•Modo de ver e representar o
espaço.
•Produz a ilusão da
realidade, mostrando os
objetos no espaço nas suas
posições e tamanhos
corretos.
•Quando olhamos para uma
paisagem ou ambiente
interior temos uma visão
periférica, uma perspetiva
curvilínea do ambiente.
Perspetiva cónica
Se nos colocarmos atrás de
uma janela envidraçada e,
sem nos movermos do lugar,
riscarmos no vidro o que
observamos através da
janela", estamos a desenhar
em perspetiva.
Numa posição fixa,
sem mexermos a
cabeça, só a realidade
abrangida por um
cone de visão de 60º
pode ser
representada sem
distorções.
60º
•Tem por base o
sistema de
projeção central
ou cónica.
Pode ser realizada
com 1, 2 ou 3
pontos de fuga.
Representa a
realidade visual
A PERSPECTIVA CÓNICA
Perspetiva cónica com um
ponto de fuga ou
perspetiva cónica frontal:
esquema para um cubo.
PF (ponto de fuga)PM1 (ponto métrico) PM2
PV (ponto de vista)
LH (linha do horizonte)
Linha do horizonte – A linha horizontal que passa pelos olhos do observador
Ponto de fuga – O ponto na linha horizontal, para onde vão
terminar as linhas perpendiculares à linha do horizonte;
Ponto de vista – O ponto de onde o observador está a ver o
objeto.
Pontos métricos – Servem para determinar a
variação das dimensões dos objetos com a
profundidade (PM1; PM2).
São localizados na linha do horizonte, à
esquerda e à direita do ponto de fuga, na
distância do ponto de fuga ao ponto de vista
PF (ponto de fuga)PM1 (ponto métrico) PM2
PV (ponto de vista)
LH (linha do horizonte)
Desenhar a vista de frente do cubo e pelos vértices traçar
4 linhas de fuga
PF (ponto de fuga)PM1 (ponto métrico) PM2
PV (ponto de vista)
LH (linha do horizonte)
Com o compasso em PF e abertura até PV traçar o arco
que descreve os pontos métricos.
Unir os vértices do quadrado aos pontos métricos.
Onde as linhas traçadas cruzarem as linhas de fuga temos os 4 vértices do cubo que
faltavam
PF (ponto de fuga)PM1 (ponto métrico) PM2
PV (ponto de vista)
LH (linha do horizonte)
Perspetiva Cónica Frontal de uma Sala
Desenha e pinta (pode ser só com o lápis de grafite) uma perspetiva cónica frontal de
uma sala. Segue os esquemas das figuras.
Materiais a utilizar:
• Papel de desenho em tamanho A3;
• Lápis de grafite: HB e 3B;
• Borracha;
• Régua de pelo menos 40 cm;
• Esquadro de 45º ou de 30º-60º;
• Compasso;
• Lápis de cor.
•A sala a desenhar tem
2,40 metros por 2,40
metros, e 2,40 de altura,
com mosaicos no chão de
30 cm por 30 cm.
•A linha de horizonte do
observador tem 1,60
metros de altura.
•Existe um rodapé de 10
cm.
•Existe uma janela na
parede de frente,
centrada na parede e com
60 cm de largura por 1,60
de altura, a 40 cm do
chão.
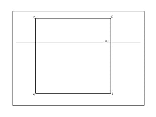
•Para os limites da sala, traça a parede
do quarto em frente ao observador,
correspondente ao quadrado ABCD,
com 24 cm de lado, a 4 cm da
margem do fundo.
•Será uma parede desenhada à escala
de 1:10.
•A 16 cm do fundo do quadrado e
paralelo ao fundo, traça a linha de
horizonte LH, atravessando o
quadrado.
A B
CD
LH
Localiza um ponto de
fuga PF na LH, e
traçar a distância até
ao ponto de vista PV,
perpendicular com o
fundo.
Com a mesma
distância entre PF e
PV, localiza PM1 e
PM2 na LH.
Traça segmentos de
recta de PF até A, de PF
até B, de PF até C, de PF
até D, de PM1 até B, de
PM1 até C, de PM2 até A
e de PM2 até D.
A
B
CD
LHPF
PV
PM1 PM2
Na intersecção de
PM1-B com PF-A,
localiza o ponto E.
Na intersecção de
PM2-A com PF-B,
localiza o ponto F.
Na intersecção de
PM2-D com PF-C,
localiza o ponto G.
Na intersecção de
PM1-C com PF-D,
localiza o ponto H.
Completa o quarto,
traçando os
seguintes segmentos
de recta: A-E, B-F,
C-G, D-H, E-F, F-G,
G-H, E-H.
A
B
CD
LHPF
PV
PM1 PM2
E F
GH
A
B
CD
LHPF
PV
PM1 PM2
E F
GH
Para o rodapé, mede 1
cm na A-D a partir de A, e
traça até E-H, em direção
a PF.
Mede 1 cm na B-C a
partir de B, e traça até F-
G, em direção a PF.
Completar o
rodapé entre
E-H e F-G.
A
B
CD
LHPF
PV
PM1 PM2
E F
GH
A
B
CD
LHPF
PV
PM1 PM2
E F
GH
Para a janela, mede 4
cm na A-D a partir de
A, e traça até E-H, em
direcção a PF.
Medir 20 cm na A-D a
partir de A, e traça
até E-H, em direcção
a PF.
Traça paralelas ao
fundo, desde as
intersecções no E-H
até F-G.
Mede 3 cm na A-B a partir
do meio e para cada lado, e
traça até PF (ou utiliza os
mosaicos para o efeito).
Traça perpendicular ao
fundo, desde as
intersecções no E-F até G-
H.
Traça a janela pelas
intersecções dos traçados
prévios na superfície
EFGH.
A
B
CD
LHPF
PV
PM1 PM2
E F
GH
A perspetiva está pronta
e pode ser completada:
com os acabamentos das
superfícies, elaboração
dos padrões dos
mosaicos e mobília
(opcional).
A
B
CD
LHPF
PV
PM1 PM2
E F
GH
A
B
CD
E F
GH
EscolaEB2,3AntónioGedeão–ProfessoraMadalenaMoura

Perspetiva cónica

  • 2.
    •Modo de vere representar o espaço. •Produz a ilusão da realidade, mostrando os objetos no espaço nas suas posições e tamanhos corretos.
  • 3.
    •Quando olhamos parauma paisagem ou ambiente interior temos uma visão periférica, uma perspetiva curvilínea do ambiente.
  • 4.
    Perspetiva cónica Se noscolocarmos atrás de uma janela envidraçada e, sem nos movermos do lugar, riscarmos no vidro o que observamos através da janela", estamos a desenhar em perspetiva.
  • 5.
    Numa posição fixa, semmexermos a cabeça, só a realidade abrangida por um cone de visão de 60º pode ser representada sem distorções. 60º
  • 6.
    •Tem por baseo sistema de projeção central ou cónica. Pode ser realizada com 1, 2 ou 3 pontos de fuga. Representa a realidade visual A PERSPECTIVA CÓNICA
  • 15.
    Perspetiva cónica comum ponto de fuga ou perspetiva cónica frontal: esquema para um cubo.
  • 16.
    PF (ponto defuga)PM1 (ponto métrico) PM2 PV (ponto de vista) LH (linha do horizonte) Linha do horizonte – A linha horizontal que passa pelos olhos do observador Ponto de fuga – O ponto na linha horizontal, para onde vão terminar as linhas perpendiculares à linha do horizonte; Ponto de vista – O ponto de onde o observador está a ver o objeto. Pontos métricos – Servem para determinar a variação das dimensões dos objetos com a profundidade (PM1; PM2). São localizados na linha do horizonte, à esquerda e à direita do ponto de fuga, na distância do ponto de fuga ao ponto de vista
  • 17.
    PF (ponto defuga)PM1 (ponto métrico) PM2 PV (ponto de vista) LH (linha do horizonte) Desenhar a vista de frente do cubo e pelos vértices traçar 4 linhas de fuga
  • 18.
    PF (ponto defuga)PM1 (ponto métrico) PM2 PV (ponto de vista) LH (linha do horizonte) Com o compasso em PF e abertura até PV traçar o arco que descreve os pontos métricos. Unir os vértices do quadrado aos pontos métricos.
  • 19.
    Onde as linhastraçadas cruzarem as linhas de fuga temos os 4 vértices do cubo que faltavam PF (ponto de fuga)PM1 (ponto métrico) PM2 PV (ponto de vista) LH (linha do horizonte)
  • 33.
    Perspetiva Cónica Frontalde uma Sala Desenha e pinta (pode ser só com o lápis de grafite) uma perspetiva cónica frontal de uma sala. Segue os esquemas das figuras. Materiais a utilizar: • Papel de desenho em tamanho A3; • Lápis de grafite: HB e 3B; • Borracha; • Régua de pelo menos 40 cm; • Esquadro de 45º ou de 30º-60º; • Compasso; • Lápis de cor.
  • 34.
    •A sala adesenhar tem 2,40 metros por 2,40 metros, e 2,40 de altura, com mosaicos no chão de 30 cm por 30 cm. •A linha de horizonte do observador tem 1,60 metros de altura. •Existe um rodapé de 10 cm. •Existe uma janela na parede de frente, centrada na parede e com 60 cm de largura por 1,60 de altura, a 40 cm do chão. •Para os limites da sala, traça a parede do quarto em frente ao observador, correspondente ao quadrado ABCD, com 24 cm de lado, a 4 cm da margem do fundo. •Será uma parede desenhada à escala de 1:10. •A 16 cm do fundo do quadrado e paralelo ao fundo, traça a linha de horizonte LH, atravessando o quadrado.
  • 35.
  • 36.
    Localiza um pontode fuga PF na LH, e traçar a distância até ao ponto de vista PV, perpendicular com o fundo. Com a mesma distância entre PF e PV, localiza PM1 e PM2 na LH. Traça segmentos de recta de PF até A, de PF até B, de PF até C, de PF até D, de PM1 até B, de PM1 até C, de PM2 até A e de PM2 até D. A B CD LHPF PV PM1 PM2
  • 37.
    Na intersecção de PM1-Bcom PF-A, localiza o ponto E. Na intersecção de PM2-A com PF-B, localiza o ponto F. Na intersecção de PM2-D com PF-C, localiza o ponto G. Na intersecção de PM1-C com PF-D, localiza o ponto H. Completa o quarto, traçando os seguintes segmentos de recta: A-E, B-F, C-G, D-H, E-F, F-G, G-H, E-H. A B CD LHPF PV PM1 PM2 E F GH
  • 38.
  • 39.
    Para o rodapé,mede 1 cm na A-D a partir de A, e traça até E-H, em direção a PF. Mede 1 cm na B-C a partir de B, e traça até F- G, em direção a PF. Completar o rodapé entre E-H e F-G. A B CD LHPF PV PM1 PM2 E F GH
  • 40.
  • 41.
    Para a janela,mede 4 cm na A-D a partir de A, e traça até E-H, em direcção a PF. Medir 20 cm na A-D a partir de A, e traça até E-H, em direcção a PF. Traça paralelas ao fundo, desde as intersecções no E-H até F-G. Mede 3 cm na A-B a partir do meio e para cada lado, e traça até PF (ou utiliza os mosaicos para o efeito). Traça perpendicular ao fundo, desde as intersecções no E-F até G- H. Traça a janela pelas intersecções dos traçados prévios na superfície EFGH. A B CD LHPF PV PM1 PM2 E F GH
  • 42.
    A perspetiva estápronta e pode ser completada: com os acabamentos das superfícies, elaboração dos padrões dos mosaicos e mobília (opcional). A B CD LHPF PV PM1 PM2 E F GH
  • 43.