INSTALAÇÕES PARA
GADO LEITEIRO
Numa propriedade leiteira, as
instalações são de grande
importância, porque facilitam o
manejo dos animais, influenciando
diretamente na sua produtividade e
saúde.
As instalações diferem conforme o
sistema utilizado, podendo ser:
Sistema Intensivo, “free stall” é o
mais utilizado, Sistema Extensivo e
Sistema Semi-intensivo.
Introdução
Instalações no Sistema Intensivo
“free stall”: galpão para
descanso das vacas, área de
comedouro e bebedouro, ligação
facilitada aos silos e fábrica de
ração, controle de limpeza , pé
direito de 4,0/4,5 m, e sala de
ordenha (normalmente
automatizada).
No Sistema Extensivo a
maioria é gado mestiço e tem
dupla aptidão, o leite é
subproduto (uma ordenha
diária), geralmente as
instalações são: curral rústico,
precário e com pouca higiene,
e bezerreiro, porém, as vacas
ficam soltas em cercado com os
bezerros
IntroduçãoNo Sistema Semi-intensivo o gado
é mais selecionado em relação ao
extensivo, existe uma divisão em
lotes por categoria ou
produtividade, é comum a rotação
de pastagem e as instalações são
mais elaboradas em relação ao
extensivo: Sistema de
resfriamento e conservação do
leite, currais de alimentação e de
espera.
IntroduçãoO Sistema Semi-Intensivo na 1ª fase conta
ainda com Maternidade (piquete – pasto),
Bezerreiros com baias individuais (até 60
dias), e na 2ª fase baias coletivas com até 8
animais/baia (até 4/5 meses), na 3ª e 4ª fases,
piquete – pasto, abrigos, comedouros e
bebedouros. Para as Vacas em Produção,
batedouros: piquetes cercados localizados
próximo ao estábulo(<1km), com saleiro,
bebedouro, comedouros cobertos, e curral de
volumosos.
Introdução
O ESTÁBULO
IntroduçãoPara atender às necessidades
mínimas do sistema de produção
de leite, o estábulo deve possuir
os seguintes componentes: curral
de espera, sala de ordenha,
bezerreiro, curral de alimentação,
brete para manejo sanitário,
embarcadouro, depósito de
materiais, sala de manuseio de
leite e cobertura do estábulo.
Introdução
CURRAL DE
ESPERA
IntroduçãoO Curral de Espera tem a função de agrupar os
animais que serão ordenhados
(2,5 m2/cabeça), exigido na produção de leite tipo
“B” quando não dispõe de curral de volumosos
concretado. O declive deve ser de 2% a 4%, deve
conter apenas bebedouro nas mesmas dimensões
e técnicas do curral de volumosos.
Os complementos são: lava pés (6,0 x 1,0 x 0,2 m),
pedilúvio coberto (2,5 x 1,0 x 0,2 m) contendo
solução preventiva/curativa de cascos, tronco de
vacinações (1,5 m/cab), brete pulverizador,
balança e embarcadouro.
CURRAL DE ESPERA: BRETE
Introdução
BEZERREIRO
IntroduçãoÉ importante que fique em área
coberta e tenha duas baias (divisões),
sendo uma para animais até 60 dias e
outra para animais acima dessa
idade. Pela parte externa, a baia dos
animais mais jovens deve ser provida
de baldes para o fornecimento do
leite, que servem, também, de
bebedouro.
Introdução
Tanto o cocho de alimentação
como o bebedouro devem ficar
preferencialmente do lado
externo do bezerreiro, para
evitar contaminação do
alimento ou da água, tendo-se
o cuidado de colocá-los fora do
alcance das chuvas.
IntroduçãoO solo deve ser cimentado, sendo o
piso do bezerreiro elevado,
construído com sarrafos de madeira
para permitir boa drenagem e
ventilação. Para proteção dos ventos
fortes e chuvas, pode-se usar uma
lona estendida de cima até o solo.
Nos dias mais quentes, essa lona
deve ser enrolada e fixada na parte
superior do bezerreiro.
IntroduçãoCURRAL
DE
ALIMENTAÇÃO
IntroduçãoÉ um compartimento destinado às
vacas já ordenhadas e que serão
suplementadas, com alimento
volumoso (capim ou leguminosa de
corte) ou com mistura concentrada
(protéico-energética). O comprimento
dos cochos deve permitir um espaço
de 0,60 a 0,80 m para cada animal,
podendo ser construídos com
alvenaria ou com madeira.
IntroduçãoAí os animais devem permanecer
até o final da ordenha das
vacas. É importante que parte
desse curral seja coberto com telha
ou palha, para evitar água nos
cochos e para que os animais se
protejam do sol nas horas mais
quentes do dia.
IntroduçãoO Curral de Volumosos tem forma quadrada,
circular ou retangular, comedouro simples
(acesso por um lado) ou duplo, espaço à frente:
comprimento da vaca (1,8 a 2,0 m) + espaço
para circulação (0,7 a 2,0m/vaca), piso: pedras
graníticas retangulares, concreto capeado com
argamassa a areia grossa, declividade de 1 a 3
%, divisórias (até 1,6 m) seção de 15 a 20 cm e
espaçados de 1,5 a 2,0 m, tábuas ou 5 a 8 fios
de arame liso ovalado e distância entre esteios
de 6m e balancins a cada 2m.
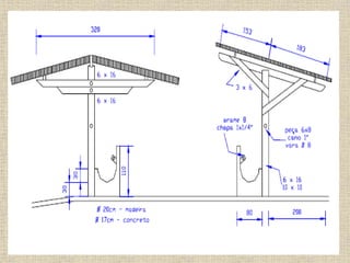
COMEDOURO DE VOLUMOSOS
Introdução
BRETE PARA
MANEJO SANITÁRIO
Introdução
Localizado no curral, o brete é uma
instalação para contenção dos
animais no manejo sanitário,
permitindo a saída para a área
externa ao curral ou para o
embarcadouro.
BRETE COM BALANÇA
Introdução
Embarcadouro
IntroduçãoÉ uma instalação de grande
utilidade numa propriedade
leiteira, pois permite o embarque
e o desembarque de animais,
com segurança. Quando não
utilizado com freqüência, pode
ser construído com madeira
serrada ou não.
IntroduçãoPara maior durabilidade, deve
ser construído com madeira de
boa qualidade. O piso pode ser
de tábua, pedra batida ou
cimentado, devendo sua frente
ficar a uma altura de 1,0 a 1,20 m
do nível do solo. É recomendável
1 m de largura. Deve ficar
localizado no final do brete.
Introdução
DEPÓSITO DE
MATERIAIS
IntroduçãoConstitui um compartimento
isolado do restante do curral,
construído em alvenaria e
permitindo o acesso pela sala de
ordenha e pela área externa ao
curral. O acesso externo deve ser
utilizado para a entrada de
materiais e para limpeza periódica
do local. Deve ser forrado, pintado
com cal e piso cimentado.
Introdução
SALA DE
MANUSEIO
DO LEITE
IntroduçãoConstruída em alvenaria, é uma instalação de
recepção do leite e onde deverão ficar os
materiais de ordenha (balança, baldes, crivos,
toalhas, tambores etc.), assim como o armário
de medicamentos, resfriador, etc. Deve ter
forro e ser provido de balcão, pia e fonte de
água, sendo a parede preferencialmente
revestida de louça (azulejada) e piso
recoberto de lajota. Área de 20 a 25 m2, pé
direito: 2,5 m, portas e janelas teladas e
cobertura de laje ou forrada.
Ao término de cada ordenha individual, o
leite é trazido para essa sala e colocado, em
tambor próprio, para condicionamento.
Introdução
A Sala de Máquinas abriga o
compressor do resfriador, a bomba de
vácuo do sistema de ordenha
mecânica, e a bomba d’água gelada do
resfriador ao pré resfriador, o pé
direito pode ser menor que na sala de
leite
Introdução
COBERTURA DO
ESTÁBULO
IntroduçãoPara cobrir o estábulo, podem ser
utilizados telha canal, madeira
(cavaco), fibrocimento, zinco ou
palha. A madeira para suporte da
cobertura dever ser de longa
durabilidade. Recomenda-se deixar
uma abertura na parte superior do
telhado para saída de ar quente,
diminuindo a temperatura no
interior da instalação. A altura do pé
direito deve ser de 2,70 a 3,00 m.
Introdução
CONSIDERAÇÕES
PARA O
PLANEJAMENTO DAS
INSTALAÇÕES
IntroduçãoLOCALIZAÇÃO – O terreno deve ter boas
características de drenagem, ser levemente
inclinado e protegido contra ventos frios
a fim de minimizar os problemas advindos da
alta concentração de umidade no local.
Deve ter abastecimento de energia elétrica
e de água potável, vias de acesso e por fim,
formas e dimensões necessárias para
permitir ampliações futuras e distribuição
racional das instalações.
.
IntroduçãoORIENTAÇÃO – A orientação está
intimamente relacionada com a
localização. No entanto, há uma
regra básica que deve em geral ser
respeitada para todo tipo de
construção zootécnica nos trópicos
(salvo raras exceções como os
bezerreiros), o eixo longitudinal da
obra deve estar orientado no
sentido leste-oeste.
Introdução
REFERÊNCIAS:
Instituto Federal de Educação, Ciência e
Tecnologia do Norte de Minas Gerais
BIODIGESTORES
RURAIS
A produção de esterco e de dejetos animais em
propriedades rurais está entre as principais causas
de contaminação dos aqüíferos. Estas produções
representam perda potencial de energia
aproveitável e de adubo rico em fósforo (P) e
nitrogênio (N) o qual apresenta alto custo e difícil
aquisição. Desta forma, o aproveitamento de
dejetos animais apresenta pontos atrativos, como
a redução da liberação de resíduos no meio
ambiente e o maior acesso a fontes de energia de
baixo custo. Na prática a produção de biogás é
possível com a utilização de um equipamento
denominado de BIODIGESTOR.
BIODIGESTORES
RURAIS MODELO
INDIANO
Este modelo de biodigestor caracteriza-se por
possuir uma campânula como gasômetro, a qual
pode estar mergulhada sobre a biomassa em
fermentação, ou em um selo d’água externo, e
uma parede central que divide o tanque de
fermentação em duas câmaras. A função da
parede divisória faz com que o material circule
por todo o interior da câmara de fermentação.
Observando a figura:
H - é a altura do nível do
substrato;
Di - é o diâmetro interno do
biodigestor;
Dg - é o diâmetro do gasômetro;
Ds - é o diâmetro interno da
parede superior;
h1 - é a altura ociosa (reservatório
do biogás);
h2 - é a altura útil do gasômetro.
a - é a altura da caixa de entrada.
e - é a altura de entrada do cano
com o afluente.
O modelo indiano possui pressão de operação
constante, ou seja, à medida que o volume de
gás produzido não é consumido de imediato, o
gasômetro tende a deslocar-se verticalmente,
aumentando o volume deste, portanto,
mantendo a pressão no interior deste constante.
Funcionamento do Biodigestor
O biodigestor é onde a biomassa sofre a
digestão pelas bactérias anaeróbicas, gerando
gás. Consiste em um recipiente fechado,
construído de alvenaria, concreto ou outros
materiais, onde é depositado o material a ser
digerido. O processo de decomposição da
matéria orgânica resulta na produção de biogás
e biofertilizante.
BIODIGESTOR
MODELO CHINÊS
O modelo Chinês é constituído quase todo em
alvenaria, dispensando o uso de gasômetro em
chapa de aço, reduzindo os custos, mas, se a
estrutura não for bem vedada e impermeabilizada
pode ocorrer vazamento. Neste modelo uma
parcela do gás(formado na caixa de saída), é
libertado, reduzindo parcialmente a pressão
interna, motivo pelo qual não são utilizadas para
instalações de grande porte.
O substrato deverá ser fornecido continuamente,
com a concentração de sólidos totais em torno de
8%, para evitar entupimentos do sistema de
entrada e facilitar a circulação do material.
Da mesma forma que o anterior:
D - é o diâmetro do corpo cilíndrico;
H - é a altura do corpo cilíndrico;
Hg - é a altura da calota do
gasômetro;
hf - é a altura da calota do fundo;
Of - é o centro da calota esférica do
fundo;
Og - é o centro da calota esférica do
gasômetro;
he - é a altura da caixa de entrada;
De - é o diâmetro da caixa de
entrada;
hs - é a altura da caixa de saída;
Ds - é o diâmetro da caixa de saída;
a - é o afundamento do gasômetro;
BIODIGESTOR
MODELO BATELADA
Sistema simples e fácil, sua instalação poderá ser
apenas um tanque anaeróbio, ou vários tanques
em série. Esse tipo é abastecido de uma única vez,
portanto não é um biodigestor contínuo.
Enquanto os modelos chinês e indiano servem
para atender propriedades onde há
disponibilidade de biomassa, o modelo em
batelada adapta-se melhor quando essa
disponibilidade ocorre em períodos mais longos,
como em granjas avícolas de corte, após venda dos
animais e limpeza do galpão.
Di é o diâmetro interno do
biodigestor;
Ds é o diâmetro interno da parede
superior;
Dg é o diâmetro do gasômetro
H é a altura do nível do substrato;
h1 é a altura ociosa do gasômetro;
h2 é a altura útil do gasômetro;
h3 é a altura útil para
deslocamento do gasômetro;
b é a altura da parede do
biodigestor acima do nível do
substrato;
c é a altura do gasômetro acima
da parede do biodigestor.
Inst gado leit_bio_digest_apres

Inst gado leit_bio_digest_apres

  • 1.
  • 2.
    Numa propriedade leiteira,as instalações são de grande importância, porque facilitam o manejo dos animais, influenciando diretamente na sua produtividade e saúde. As instalações diferem conforme o sistema utilizado, podendo ser: Sistema Intensivo, “free stall” é o mais utilizado, Sistema Extensivo e Sistema Semi-intensivo.
  • 3.
    Introdução Instalações no SistemaIntensivo “free stall”: galpão para descanso das vacas, área de comedouro e bebedouro, ligação facilitada aos silos e fábrica de ração, controle de limpeza , pé direito de 4,0/4,5 m, e sala de ordenha (normalmente automatizada).
  • 6.
    No Sistema Extensivoa maioria é gado mestiço e tem dupla aptidão, o leite é subproduto (uma ordenha diária), geralmente as instalações são: curral rústico, precário e com pouca higiene, e bezerreiro, porém, as vacas ficam soltas em cercado com os bezerros
  • 9.
    IntroduçãoNo Sistema Semi-intensivoo gado é mais selecionado em relação ao extensivo, existe uma divisão em lotes por categoria ou produtividade, é comum a rotação de pastagem e as instalações são mais elaboradas em relação ao extensivo: Sistema de resfriamento e conservação do leite, currais de alimentação e de espera.
  • 11.
    IntroduçãoO Sistema Semi-Intensivona 1ª fase conta ainda com Maternidade (piquete – pasto), Bezerreiros com baias individuais (até 60 dias), e na 2ª fase baias coletivas com até 8 animais/baia (até 4/5 meses), na 3ª e 4ª fases, piquete – pasto, abrigos, comedouros e bebedouros. Para as Vacas em Produção, batedouros: piquetes cercados localizados próximo ao estábulo(<1km), com saleiro, bebedouro, comedouros cobertos, e curral de volumosos.
  • 15.
  • 16.
    IntroduçãoPara atender àsnecessidades mínimas do sistema de produção de leite, o estábulo deve possuir os seguintes componentes: curral de espera, sala de ordenha, bezerreiro, curral de alimentação, brete para manejo sanitário, embarcadouro, depósito de materiais, sala de manuseio de leite e cobertura do estábulo.
  • 18.
  • 19.
    IntroduçãoO Curral deEspera tem a função de agrupar os animais que serão ordenhados (2,5 m2/cabeça), exigido na produção de leite tipo “B” quando não dispõe de curral de volumosos concretado. O declive deve ser de 2% a 4%, deve conter apenas bebedouro nas mesmas dimensões e técnicas do curral de volumosos. Os complementos são: lava pés (6,0 x 1,0 x 0,2 m), pedilúvio coberto (2,5 x 1,0 x 0,2 m) contendo solução preventiva/curativa de cascos, tronco de vacinações (1,5 m/cab), brete pulverizador, balança e embarcadouro.
  • 20.
  • 22.
  • 23.
    IntroduçãoÉ importante quefique em área coberta e tenha duas baias (divisões), sendo uma para animais até 60 dias e outra para animais acima dessa idade. Pela parte externa, a baia dos animais mais jovens deve ser provida de baldes para o fornecimento do leite, que servem, também, de bebedouro.
  • 25.
    Introdução Tanto o cochode alimentação como o bebedouro devem ficar preferencialmente do lado externo do bezerreiro, para evitar contaminação do alimento ou da água, tendo-se o cuidado de colocá-los fora do alcance das chuvas.
  • 27.
    IntroduçãoO solo deveser cimentado, sendo o piso do bezerreiro elevado, construído com sarrafos de madeira para permitir boa drenagem e ventilação. Para proteção dos ventos fortes e chuvas, pode-se usar uma lona estendida de cima até o solo. Nos dias mais quentes, essa lona deve ser enrolada e fixada na parte superior do bezerreiro.
  • 31.
  • 32.
    IntroduçãoÉ um compartimentodestinado às vacas já ordenhadas e que serão suplementadas, com alimento volumoso (capim ou leguminosa de corte) ou com mistura concentrada (protéico-energética). O comprimento dos cochos deve permitir um espaço de 0,60 a 0,80 m para cada animal, podendo ser construídos com alvenaria ou com madeira.
  • 33.
    IntroduçãoAí os animaisdevem permanecer até o final da ordenha das vacas. É importante que parte desse curral seja coberto com telha ou palha, para evitar água nos cochos e para que os animais se protejam do sol nas horas mais quentes do dia.
  • 35.
    IntroduçãoO Curral deVolumosos tem forma quadrada, circular ou retangular, comedouro simples (acesso por um lado) ou duplo, espaço à frente: comprimento da vaca (1,8 a 2,0 m) + espaço para circulação (0,7 a 2,0m/vaca), piso: pedras graníticas retangulares, concreto capeado com argamassa a areia grossa, declividade de 1 a 3 %, divisórias (até 1,6 m) seção de 15 a 20 cm e espaçados de 1,5 a 2,0 m, tábuas ou 5 a 8 fios de arame liso ovalado e distância entre esteios de 6m e balancins a cada 2m.
  • 36.
  • 39.
  • 40.
    Introdução Localizado no curral,o brete é uma instalação para contenção dos animais no manejo sanitário, permitindo a saída para a área externa ao curral ou para o embarcadouro.
  • 42.
  • 44.
  • 45.
    IntroduçãoÉ uma instalaçãode grande utilidade numa propriedade leiteira, pois permite o embarque e o desembarque de animais, com segurança. Quando não utilizado com freqüência, pode ser construído com madeira serrada ou não.
  • 46.
    IntroduçãoPara maior durabilidade,deve ser construído com madeira de boa qualidade. O piso pode ser de tábua, pedra batida ou cimentado, devendo sua frente ficar a uma altura de 1,0 a 1,20 m do nível do solo. É recomendável 1 m de largura. Deve ficar localizado no final do brete.
  • 48.
  • 50.
    IntroduçãoConstitui um compartimento isoladodo restante do curral, construído em alvenaria e permitindo o acesso pela sala de ordenha e pela área externa ao curral. O acesso externo deve ser utilizado para a entrada de materiais e para limpeza periódica do local. Deve ser forrado, pintado com cal e piso cimentado.
  • 51.
  • 52.
    IntroduçãoConstruída em alvenaria,é uma instalação de recepção do leite e onde deverão ficar os materiais de ordenha (balança, baldes, crivos, toalhas, tambores etc.), assim como o armário de medicamentos, resfriador, etc. Deve ter forro e ser provido de balcão, pia e fonte de água, sendo a parede preferencialmente revestida de louça (azulejada) e piso recoberto de lajota. Área de 20 a 25 m2, pé direito: 2,5 m, portas e janelas teladas e cobertura de laje ou forrada.
  • 53.
    Ao término decada ordenha individual, o leite é trazido para essa sala e colocado, em tambor próprio, para condicionamento.
  • 54.
    Introdução A Sala deMáquinas abriga o compressor do resfriador, a bomba de vácuo do sistema de ordenha mecânica, e a bomba d’água gelada do resfriador ao pré resfriador, o pé direito pode ser menor que na sala de leite
  • 55.
  • 56.
    IntroduçãoPara cobrir oestábulo, podem ser utilizados telha canal, madeira (cavaco), fibrocimento, zinco ou palha. A madeira para suporte da cobertura dever ser de longa durabilidade. Recomenda-se deixar uma abertura na parte superior do telhado para saída de ar quente, diminuindo a temperatura no interior da instalação. A altura do pé direito deve ser de 2,70 a 3,00 m.
  • 57.
  • 58.
    IntroduçãoLOCALIZAÇÃO – Oterreno deve ter boas características de drenagem, ser levemente inclinado e protegido contra ventos frios a fim de minimizar os problemas advindos da alta concentração de umidade no local. Deve ter abastecimento de energia elétrica e de água potável, vias de acesso e por fim, formas e dimensões necessárias para permitir ampliações futuras e distribuição racional das instalações. .
  • 59.
    IntroduçãoORIENTAÇÃO – Aorientação está intimamente relacionada com a localização. No entanto, há uma regra básica que deve em geral ser respeitada para todo tipo de construção zootécnica nos trópicos (salvo raras exceções como os bezerreiros), o eixo longitudinal da obra deve estar orientado no sentido leste-oeste.
  • 61.
    Introdução REFERÊNCIAS: Instituto Federal deEducação, Ciência e Tecnologia do Norte de Minas Gerais
  • 62.
  • 63.
    A produção deesterco e de dejetos animais em propriedades rurais está entre as principais causas de contaminação dos aqüíferos. Estas produções representam perda potencial de energia aproveitável e de adubo rico em fósforo (P) e nitrogênio (N) o qual apresenta alto custo e difícil aquisição. Desta forma, o aproveitamento de dejetos animais apresenta pontos atrativos, como a redução da liberação de resíduos no meio ambiente e o maior acesso a fontes de energia de baixo custo. Na prática a produção de biogás é possível com a utilização de um equipamento denominado de BIODIGESTOR.
  • 65.
  • 66.
    Este modelo debiodigestor caracteriza-se por possuir uma campânula como gasômetro, a qual pode estar mergulhada sobre a biomassa em fermentação, ou em um selo d’água externo, e uma parede central que divide o tanque de fermentação em duas câmaras. A função da parede divisória faz com que o material circule por todo o interior da câmara de fermentação.
  • 67.
    Observando a figura: H- é a altura do nível do substrato; Di - é o diâmetro interno do biodigestor; Dg - é o diâmetro do gasômetro; Ds - é o diâmetro interno da parede superior; h1 - é a altura ociosa (reservatório do biogás); h2 - é a altura útil do gasômetro. a - é a altura da caixa de entrada. e - é a altura de entrada do cano com o afluente.
  • 68.
    O modelo indianopossui pressão de operação constante, ou seja, à medida que o volume de gás produzido não é consumido de imediato, o gasômetro tende a deslocar-se verticalmente, aumentando o volume deste, portanto, mantendo a pressão no interior deste constante.
  • 69.
  • 71.
    O biodigestor éonde a biomassa sofre a digestão pelas bactérias anaeróbicas, gerando gás. Consiste em um recipiente fechado, construído de alvenaria, concreto ou outros materiais, onde é depositado o material a ser digerido. O processo de decomposição da matéria orgânica resulta na produção de biogás e biofertilizante.
  • 72.
  • 73.
    O modelo Chinêsé constituído quase todo em alvenaria, dispensando o uso de gasômetro em chapa de aço, reduzindo os custos, mas, se a estrutura não for bem vedada e impermeabilizada pode ocorrer vazamento. Neste modelo uma parcela do gás(formado na caixa de saída), é libertado, reduzindo parcialmente a pressão interna, motivo pelo qual não são utilizadas para instalações de grande porte. O substrato deverá ser fornecido continuamente, com a concentração de sólidos totais em torno de 8%, para evitar entupimentos do sistema de entrada e facilitar a circulação do material.
  • 74.
    Da mesma formaque o anterior: D - é o diâmetro do corpo cilíndrico; H - é a altura do corpo cilíndrico; Hg - é a altura da calota do gasômetro; hf - é a altura da calota do fundo; Of - é o centro da calota esférica do fundo; Og - é o centro da calota esférica do gasômetro; he - é a altura da caixa de entrada; De - é o diâmetro da caixa de entrada; hs - é a altura da caixa de saída; Ds - é o diâmetro da caixa de saída; a - é o afundamento do gasômetro;
  • 75.
  • 76.
    Sistema simples efácil, sua instalação poderá ser apenas um tanque anaeróbio, ou vários tanques em série. Esse tipo é abastecido de uma única vez, portanto não é um biodigestor contínuo. Enquanto os modelos chinês e indiano servem para atender propriedades onde há disponibilidade de biomassa, o modelo em batelada adapta-se melhor quando essa disponibilidade ocorre em períodos mais longos, como em granjas avícolas de corte, após venda dos animais e limpeza do galpão.
  • 78.
    Di é odiâmetro interno do biodigestor; Ds é o diâmetro interno da parede superior; Dg é o diâmetro do gasômetro H é a altura do nível do substrato; h1 é a altura ociosa do gasômetro; h2 é a altura útil do gasômetro; h3 é a altura útil para deslocamento do gasômetro; b é a altura da parede do biodigestor acima do nível do substrato; c é a altura do gasômetro acima da parede do biodigestor.