Notas de Aula - Mecânica dos Solos 93
UNIDADE 7 – PRESSÕES E TENSÕES NO SOLO
7.1 Introdução
Em grande parte dos problemas de engenharia de solos, é necessário o conhecimento do
estado de tensões em pontos do subsolo, antes e depois da construção de uma estrutura qualquer. As
tensões na massa de solo são causadas por cargas externas ou pelo próprio peso do solo.
As considerações acerca dos esforços introduzidos por um carregamento externo são bastante
complexas e seu tratamento, normalmente se dá, a partir das hipóteses formuladas pela teoria da
elasticidade.
7.2 Tensões geostáticas (tensões iniciais no terreno)
Dado o perfil geotécnico da Figura 7.1, no qual o nível do terreno (N.T.) é horizontal, a
natureza do solo não varia horizontalmente e não há carregamento externo (cargas aplicadas e
distribuídas) próxima a região considerada, caracteriza uma situação de tensões geostáticas. Quando
a superfície do terreno for horizontal, em um elemento de solo situado a uma profundidade “z” da
superfície não existirá tensões cisalhantes em planos verticais e horizontais, portanto, estes são
planos principais de tensões.
Figura 7.1 - Perfil geotécnico
Em uma situação de tensões geostáticas, portanto, a tensão normal vertical inicial (σvo) no
ponto “A” pode ser obtida considerando o peso do solo acima do ponto “A” dividido pela área.
( ) z
b
zb
A
W
v ⋅=
⋅⋅
== γ
γ
σ 2
2
0
onde:
W = γ . V (peso do prisma)
V = b2
. z (volume do prisma)
A = b2
(área do prisma)
γ = peso específico natural do solo
σh
σv
σh
σ = tensão normal (perpendicular ao plano)
τ = tensão cisalhante (no plano)
N.T.
Prisma
A (elemento de solo)b
b
Z
γ
Solo seco
S = 0 %
Notas de Aula - Mecânica dos Solos 94
Se o solo acima do ponto “A” for estratificado, isto é, composto de “n” camadas, o valor de
σv0 é dado pelo somatório de γi . zi, onde “i” varia de 1 a n.
∑=
⋅=
n
i
iziv
1
0 )()(γσ
Quando o peso específico da camada não for constante e se conhecer a sua lei de variação
com a profundidade, a tensão poderá ser calculada:
dzzv
z
⋅= ∫0
0 )(γσ
7.1.1 Água no solo
O ingresso de água no solo, através de infiltração no terreno e a ocorrência de um perfil
estratificado, com uma sucessão de camadas permeáveis e impermeáveis, permitem a formação de
lençóis freáticos ou artesianos. Para entender estes fenômenos, pode-se imaginar que no local foram
instalados três tubos, A, B e C (Figura 7.2 - Ortigão, 1993), o primeiro atravessando a camada
inicial permeável, seguindo por uma camada de solo impermeável e atingindo a camada inferior,
onde ocorre lençol confinado, artesiano ou sob pressão. Estes nomes se aplicam porque o nível de
água (N.A.) do tubo A está acima do nível do terreno (N.T.). O tubo B encontra um lençol livre,
situação que é verificada pelo operador no campo, pois a profundidade do nível d’água no tubo
permanece estacionária. Já a perfuração feita para instalar o tubo C atinge inicialmente o lençol
livre. Avançando-a, pode-se observar que a água subirá no tubo, indicando que se atingiu também o
lençol artesiano inferior.
A Figura 7.2 apresenta também um caso de lençol pendurado ou cativo, ou seja, preso sobre
uma fina camada de material impermeável. Se uma perfuração for aí realizada, ocorrerá perda
d’água repentina no furo assim que a perfuração atingir a camada permeável inferior.
Considerando um maciço saturado com água em condições hidrostáticas (isto é, sem fluxo) a
profundidade na qual a pressão na água é atmosférica é o chamado nível d’água natural (N.A.) ou
lençol freático. Portanto, abaixo do nível d’água, a pressão na água, ou poro-pressão ou pressão
neutra (u0) é positiva. Sendo definida pela expressão:
u0 = γw . zw
onde:
u0 = pressão neutra ou poro-pressão
γw = peso específico da água, tomado igual a 10 kN/m3
= 1g/cm3
zw = profundidade em relação ao nível da água.
A água exerce pressão de igual valor, mesma direção e sentido contrário, portanto, a
resultante é nula. A pressão na água se transmite de um ponto para outro do solo, através do contato
entre o líquido contido nos vazios do solo.
No perfil geotécnico da Figura 7.3, a tensão normal vertical inicial (σvo) no ponto “A” pode
ser obtido considerando o peso do solo saturado acima do ponto “A”, dividido pela área. Portanto,
temos:
σv0 = γ sat . z
Notas de Aula - Mecânica dos Solos 95
Figura 7.2 - Perfil de solo estratificado com diversos níveis de água.
Figura 7.3 - Perfil geotécnico. Solo saturado
7.1.2 Tensão vertical total
A tensão vertical total inicial no ponto “A”, do perfil de solo da Figura 7.4, é:
σv0 = γ . z1 + γ sat . z2
e a poro-pressão ou pressão neutra no mesmo ponto é:
u0 = γw . zw
Figura 7.4 - Perfil de solo.
N.T.
Prisma
A (elemento de solo)b
b
Z
γsat
Solo saturado
S = 100%
N.A.
N.T.
A
Z1
γsat
N.A.γ
Z2 Zw
Notas de Aula - Mecânica dos Solos 96
7.1.3 Princípio das tensões efetivas
Em 1925, Karl Terzaghi definiu que o comportamento dos solos saturados quando à
compressibilidade e à resistência ao cisalhamento depende fundamentalmente da pressão média
intergranular denominado de tensão efetiva (tensão grão a grão), foi uma das maiores contribuições
à engenharia e é considerado o marco fundamental do estabelecimento da Mecânica dos Solos com
bases científicas independentes. A comprovação desse princípio foi feita por Terzaghi de maneira
muito simples, utilizando um tanque com solo saturado e água. Aumentando o nível da água no
tanque, a pressão total (σv0) também aumenta no solo. Entretanto, não se observa qualquer
diminuição de volume no solo, o que vem comprovar que seu comportamento é totalmente
independente das tensões totais.
Nos solos saturados (S = 100%) parte das tensões normais é suportada pelo esqueleto sólido
(grãos) e parte pela fase líquida (água), portanto, tem-se que:
σ = σ’ + u
onde:
σ = tensão total
σ’ = tensão efetiva
u = pressão neutra
Exemplo 1: Calcule as tensões total, neutra e efetiva para os pontos assinalados (tensões verticais).
Faça um gráfico da variação da tensão por profundidade.
47,0
135,2
177,7
42,0
67,0
47,0
93,2
110,7
0 20 40 60 80 100 120 140 160 180 200
TENSÕES - (kN/m2)
PROFUNDIDADE-(m)
Tensão total
Pressão neutra
Tensão efetiva
Profundidade Tensão total (kN/m2
) Pressão neutra (kN/m2
) Tensão efetiva (kN/m2
)
Pontos
(m) σv0 = γ . z1 + γ sat . z2 u0 = γw . zw σ‘v0 = σv0 – u0
A 0 0 0 0
B 2,8 16,8 . 2,8 = 47,0 0 47 - 0 = 47,0
C 7,0 47 + 21 . 4,2 = 135,2 4,2 . 10 = 42,0 135 - 42 = 93,2
D 9,5 135 + 17 . 2,5 = 177,7 42 + 10 . 2,5 = 67,0 177,5 - 67,5 = 110,7
N.T.A
0,0 m
γ = 16,8 kN/m3
N.A.
- 2,8 m
- 7,0 m
- 9,5 m
B
C
D
γ = 21,0 kN/m3
γ = 17,0 kN/m3
argila
areia
silte
Notas de Aula - Mecânica dos Solos 97
7.1.4 Solos submersos
Em solos submersos (portanto saturados) define-se o peso específico submerso (γsub ou γ‘) que
permite calcular a tensão vertical efetiva (σ‘v0), em qualquer plano do solo submerso (Figura 7.5).
A tensão total (σv0) é:
σv0 = γw . z1 + γsat . z
u0 = γw . zw = γw (z1 + z)
Desta forma a tensão efetiva será:
σ‘v0 = σv0 - u0
σ‘v0 = γw . z1 + γsat . z - γw (z1 + z)
σ‘v0 = γw . z1 + γsat . z - γw . z1 - γw . z
σ‘v0 = γsat . z - γw . z = (γsat - γw) . z
como, γsub = γsat - γw, temos:
σ‘v0 = γsub . z
Esta equação é independente de zw, portanto a pressão efetiva não varia com a espessura da
lâmina de água.
Figura 7.5 - Perfil de solo submerso
7.1.5 Solos não saturados (solos parcialmente saturados)
Para solos com 0 < S (grau de saturação) < 100 e que terá em seus vazios, dois fluídos,
geralmente ar e água, está situação difere da anterior, em face das seguintes alterações:
- não há uma continuidade da coluna d’água
- a pressão neutra total é a soma da pressão na fase gasosa mais a pressão na fase líquida
e a equação σ‘ = σ - u poderá ser colocada na forma proposta por Bishop (1959).
σ‘ = σ - uar + χ (uar - uw)
onde:
uar = pressão na fase gasosa
uw = pressão na fase líquida
χ = coeficiente que varia de 0 (solos secos) a 1 (solos saturados).
O valor de χ, além de ser muito influenciado pelo grau de saturação do solo, sofre influência
também da estrutura, do ciclo de inundação-secamento e de alterações havidas no estado de tensões.
N.T.
A
Z1
γsat
N.A.
γw (lâmina de água)
Z
Zw
Notas de Aula - Mecânica dos Solos 98
7.1.6 Pressões efetivas em condições hidrodinâmicas
As tensões efetivas verticais em condições hidrodinâmicas são calculadas pela equação:
σ‘ = σ - u
Nesta equação o valor da poro-pressão (u) é estimado ou medido (in situ) através de
piezômetros. Um desses instrumentos, conhecido como o piezômetro Casagrande ou tubo aberto
está esquematizado na Figura 7.6.
O equipamento consta de uma ponta porosa (vela de filtro ou tubo perfurado, revestido com
manta ou geossintético permeável), que é instalado no terreno através de uma perfuração, ao redor
da qual executa-se um bulbo de areia. Este dispositivo permite que a água flua para o interior do
tubo. A ponta porosa se comunica com a superfície por um tubo plástico, através do qual o nível
d’água é medido. A diferença de cota entre o nível d’água medido e a ponta porosa corresponde à
pressão neutra, em metros de coluna d’água.
Figura 7.6 - Piezômetro de Casagrande (Lambe & Whitman, 1969)
Notas de Aula - Mecânica dos Solos 99
Exemplo 2: O perfil geotécnico abaixo apresenta um terreno onde os piezômetros de Casagrande
instalados indicam artesianismo do lençol inferior. Calcular as tensões totais e efetivas iniciais e a
pressão neutra nos pontos assinalados.
20
71
106106
142
50
115
0
21
31
27
95
75
11
0 20 40 60 80 100 120 140 160
TENSÕES - (kN/m2)
PROFUNDIDADE-(m)
Tensão total
Pressão neutra
Tensão efetiva
Profundidade Tensão total (kN/m2
) Pressão neutra (kN/m2
) Tensão efetiva (kN/m2
)
Pontos
(m) σv0 = γw . z1 + γsat . z u0 = γw . zw σ‘v0 = σv0 – u0
A 2,0 10 . 2 = 20 10 . 2 = 20 20 - 20 = 0
B 5,0 20 + 17 . 3 = 71 10 . 5 = 50 71 - 50 = 21
10 . (5,5 + 2) = 75 (Argila) 106 - 75 = 31
C 7,5 71 + 14 . 2,5 = 106
10 . (5,5 + 4) = 95 (Areia) 106 – 95 = 11
D 9,5 106 + 18 . 2 = 142 10 . (7,5 + 4) = 115 142 - 115 = 27
7.1.7 Tensões horizontais
Até agora foram vistas as tensões verticais iniciais, totais e efetivas, entretanto não é
suficiente para se conhecer o estado de tensão inicial, pois considerando uma situação
bidimensional, é necessário determinar as tensões que atuam em dois planos ortogonais.
Devido ao peso próprio ocorrem também tensões horizontais, que são uma parcela da tensão
vertical atuante:
v
h
k
'
'
σ
σ
=
onde o coeficiente “k” é denominado de coeficiente de tensão lateral, que é função do tipo de solo,
da história de tensões, etc.
N.T.
0,0 m
γ = 10,0 kN/m3
N.A.
- 2,0 m
- 5,0 m
- 7,5 m
A
B
C
γ = 17,0 kN/m3
γ = 14,0 kN/m3
areia
água
argila
- 11,5 m
D
γ = 18,0 kN/m3
areia
2,0 m
- 9,5 m
Notas de Aula - Mecânica dos Solos 100
Existe uma situação em que a tensão horizontal efetiva e a tensão vertical efetiva se
relacionam de maneira simples: quando não há deformação lateral do depósito (por exemplo,
extensos depósitos sedimentares). Neste caso define-se o coeficiente de tensão lateral no repouso
(ko), que é a relação entre tensões efetivas iniciais:
0
0
0
'
'
v
h
k
σ
σ
=
O valor de “K0” pode ser obtido através de ensaios de laboratório em que simulam condições
iniciais, ou seja, sem deformações laterais. In situ, pode-se determinar o valor de “K0” introduzindo
no terreno uma célula-espada (Figura 7.7), ou seja, um medidor de pressão semelhante a uma
almofada, porém de pequena espessura, que é cravado verticalmente no terreno, como uma espada,
e após a estabilização permite deduzir a tensão lateral total (σh0). Conhecendo o valor da pressão
neutra inicial (u0) e da tensão efetiva vertical (σ‘v0) obtém-se o valor de “K0” pela equação anterior.
Valores típicos de “K0”, em função do tipo de solo:
- areia fofa 0,55
- areia densa 0,40
- argila de baixa plasticidade 0,50
- argila de alta plasticidade 0,65
Há algumas relações empíricas para a determinação de “K0”, como as apresentadas na Tabela
abaixo:
Tabela 7.1 – Relações empíricas para determinação de “K0”
Relações Tipo de solo Autor / Ano
K0 = 1 - sen φ solos granulares Jaky, 1944
K0 = 0,95 - sen φ argilas normalmente adensadas Brooker e Ireland, 1965
K0 = (1 - sen φ) . OCR argilas pré-adensadas Meyerhof, 1976
K0 = (1 - sen φ) . OCRsenφ
argilas pré-adensadas Mayne e Kulhawy, 1981
Onde:
φ = ângulo de atrito interno do solo (Unidade 9)
OCR = razão de pré-adensamento (Unidade 8)
0V
Vm
OCR
σ
σ
′
′
= , (σ‘vm = tensão de pré-adensamento e σ‘v0 = tensão efetiva atual)
Figura 7.7 - Célula espada para a determinação da tensão horizontal total.
Notas de Aula - Mecânica dos Solos 101
Exemplo 3: Calcular tensão efetiva vertical inicial e a tensão efetiva horizontal inicial nos pontos
A, B, C e D no perfil geotécnico da figura abaixo e traçar o diagrama de variação das tensões com a
profundidade.
34,034,0
61,061,0
81,081,0
131,078,6
64,8
48,8
48,6
30,5
17,0
0 20 40 60 80 100 120 140 160
TENSÕES - (kPa)
PROFUNDIDADE-(m)
Tensão efetiva vertical
Tensão efetiva horizontal
Tensão efetiva vertical (kPa) Tensão efetiva horizontal (kPa)
Pontos
σ‘vo = γsub . z = (γsat - γw) . z σ’h0 = k0 . σ’v0
A 17 . 2 = 34,0 34 . 0,5 = 17,0
61 . 0,5 = 30,5
B 34 + (19 - 10) . 3 = 61,0
61 . 0,8 = 48,8
81 . 0,8 = 64,8
C 61 + (15 - 10) . 4 = 81,0
81 . 0,6 = 48,6
D 81 + (20 - 10) . 5 = 131,0 131 . 0,6 = 78,6
7.1.8 Superfície de terreno inclinado
Superfícies inclinadas geram tensões tangenciais (τ) nas faces horizontal e vertical de um
elemento de solo (Figura 7.8).
Figura 7.8 – Superfície do terreno inclinado
N.T.
A
0 m
γ = 17 e K0 = 0,5 N.A.
- 2 m
- 5 m
- 14 m
B
C
D
argila
areia
areia
- 9 m
γ = 19 e K0 = 0,5
γ = 15 e K0 = 0,8
γ = 20 e K0 = 0,6
N.T.
γ
W
b0
B
z
N
T
i
i
γ = peso específico natural
i = inclinação do terreno
Notas de Aula - Mecânica dos Solos 102
Onde:
W = peso do solo
W = γ . B . z N = W . cos i (tensão normal)
B = b0 . cos i
W = γ . bo . cos i . z T = W . sen i (tensão tangencial)
Tensão total vertical inicial (plano paralelo a superfície)
σv0 = W / A = W / (b0 . 1 m) = γ . b0 . cos i . z / (b0 . 1 m) σv0 = γ . z . cos i
Tensão total normal
σn0 = N / A = W. cos i / (b0 . 1 m) = γ . b0 . cos i . z . cos i / (b0 . 1 m) σn0 = γ . z . cos2
i
Tensão cisalhante
τ = T/A = W. sen i / (b0 . 1 m) = γ . b0 . cos i . z . sen i / (b0 . 1 m) τ = γ . z . sen i . cos i
7.1.9 Capilaridade
É um processo de movimentação d’água contrária à ação gravitacional (ascensão capilar). A
água se eleva por entre os interstícios de pequenas dimensões deixados pelas partículas sólidas
(vazios ou poros), acima do nível d’água. O nível d’água ou freático é a superfície em que atua a
pressão atmosférica e, na Mecânica dos Solos, é tomada como origem do referencial, para as poro-
pressões, e no nível freático a poro-pressão é igual a zero.
Os fenômenos de capilaridade estão associados diretamente à tensão superficial, sendo a que
atua em toda a superfície de um líquido, como decorrência da ação da energia superficial livre.
O perfil geotécnico da Figura 7.9, mostra-nos a distribuição típica da umidade do solo e da
poro-pressão (u0).
Figura 7.9 - Distribuição do teor de umidade e poro-pressão em um perfil de solo.
N.T.
zw
N.A.
água de contato
saturação capilar parcial
saturação capilar
S = 100%
N capilar
N de saturação
S < 100%
altura de
ascenção
capilar
u0 = γw . zw
- u0
( - ) ( + )
Poro-Pressão
γSAT
γSUB
franja
capilar
S = 100%
Notas de Aula - Mecânica dos Solos 103
Na Figura 7.9, tem-se o diagrama de poro-pressões, verifica-se que graças à ascensão capilar a
poro-pressão acima do nível d’água é negativa (u < 0). O solo apresenta às vezes seus poros
interligados e formando canalículos, que funcionam como tubos capilares. Assim pode-se explicar,
dentro da massa, a ocorrência de zonas saturadas de solos, que estão situadas acima do nível d’água.
Para melhor compreensão do fenômeno da capilaridade é possível partir da idéia de que
poros, entre os grãos dos solos, formam canalículos capilares verticais. Um modelo físico disso é
emergir a ponta de um tubo capilar em água (Figura 7.10).
A água subirá até uma “altura de ascensão capilar”, tanto maior esta altura quanto menor o
diâmetro do tubo, tal que a componente vertical da força capilar (Fc = 2.π.r.Ts) seja igual ao peso
da coluna d’água suspensa.
Figura 7.10 - Modelo físico do fenômeno da capilaridade.
Onde:
Ts = tensão superficial da água (0,0764 g/cm)
α = ângulo de contato
que dependem do fluído e do sólido de contato.
Portanto, para que ocorra o equilíbrio, temos que:
2π r Ts cos α = π r2
γw hc
cos2
hc
wr
Ts
γ
α
⋅
⋅
= ou
cos4
hc
wd
Ts
γ
α
⋅
⋅
=
verifica-se que a altura de ascensão capilar é inversamente proporcional ao diâmetro.
Nos solos como estimativa da ascensão capilar máxima (α = 0°)
306,0
hc
d
= , com “d” em cm.
Onde “d” é o diâmetro dos poros. Portanto nos solos arenosos e pedregulhosos onde os poros
são maiores, a altura de ascensão capilar na prática está entre 30cm e 1m. Já nos solos siltosos e
argilosos, onde os poros são menores, a altura de ascensão capilar chega a dezenas de metros.
A água em contato com o solo também tenderá a formar meniscos. Nos pontos de contato dos
meniscos com os grãos (Figura 7.11) evidentemente agirão pressões de contato, tendendo a
comprimir os grãos. Estas pressões de contato (pressões neutras negativas) somam-se as tensões
totais:
σ‘ = σ - (-u) = σ + u
α
TUBO CAPILAR
φ = dMENISCO
Patm
h0
N.A.
Ts . cos α
TsTs
u = γw . hc
P0
Notas de Aula - Mecânica dos Solos 104
fazendo com que a tensão efetiva realmente atuante seja maior que a total. Esse acréscimo de tensão
proporciona um acréscimo de resistência conhecido como coesão aparente (ver Unidade 9),
responsável, por exemplo, pela estabilidade de taludes em areia úmida. Uma vez eliminada a ação
das forças capilares (saturação do solo) desaparece este ganho de resistência (coesão aparente tende
a zero).
Figura 7.11 - Pressões de contato em uma amostra de solo.
Exemplo 4: Dado o perfil geotécnico abaixo, admitindo que na zona da franja capilar o solo esteja
completamente saturado, qual o valor da pressão neutra e efetiva nos pontos A e B.
20
-5
71
41
-15 -5 5 15 25 35 45 55 65 75
TENSÕES - (kPa)
PROFUNDIDADE-(m)
Pressão neutra
Tensão efetiva
Tensão total (kN/m2
) Pressão neutra (kN/m2
) Tensão efetiva (kN/m2
)
Pontos
σv0 = γ . z1 + γsat . z u0 = γw . zw σ’v0 = σ’v0 - u0
A 18 . 2 = 36 10 . (- 0,5) = - 5 36 - (-5) = 41
B 36 + 22 . 2,5 = 91 10 . 2 = 20 91 - 20 = 71
7.2 Propagação de tensões no solo devido a carregamentos externos
São as tensões decorrentes das cargas estruturais aplicadas (tensões induzidas), resultantes de
fundações, aterros, pavimentos, escavações, etc. A lei de variação das modificações de tensões, em
função da posição dos elementos do terreno, chama-se distribuição de pressões. Existem várias
teorias sobre a distribuição de pressões, mas vamos estudar a teoria simples ou antiga e a teoria da
elasticidade.
MENISCOS
GRÃOS DE SOLO
N.T.
N.A.
areia fina
franja capilar
A
- 2,0 m
- 2,5 m
- 4,5 m
γ = 18 kN/m2
γ = 22 kN/m2
A
B
Notas de Aula - Mecânica dos Solos 105
A distribuição de tensões comporta duas análises:
1ª) as tensões induzidas no interior do maciço;
2ª) as tensões de contato.
7.2.1 Tensões induzidas no interior do maciço
São usualmente calculadas pela teoria da elasticidade.
7.2.2 Efeito de sobrecarga
Quando se aplica uma sobrecarga ao terreno (no caso da Figura 7.12, a sobrecarga vertical Q
foi aplicada à superfície), o elemento A (x, z) tem seu estado de tensões original modificado, ou
seja:
Figura 7.12 - Efeito de uma sobrecarga em um perfil de solo.
a) tensão vertical
- inicial (efeito do peso próprio) ...........................................σv0
- final (após aplicação da sobrecarga) ..................................σv0 + ∆σv
b) tensão horizontal
- inicial ..................................................................................σh0
- final ....................................................................................σh0 + ∆σh
c) tensão cisalhante
- inicial ..................................................................................zero
- final ....................................................................................τ
x
Q
∆σh+σh0
σh0+∆σh
∆σv
+
σv0
τ
τ
∆σv
+
σv0
z
N.T.
∆σv0 = σz
∆σh0 = σx
Notas de Aula - Mecânica dos Solos 106
7.2.3 Teoria de distribuição de pressões no solo por efeito de sobrecarga
Quando se aplica uma sobrecarga ao terreno, ela produz modificações nas tensões até então
existentes. Teoricamente, tais modificações (acarretando aumento ou diminuição das tensões
existentes) ocorrem em todos os pontos do maciço solicitado. Dependendo da posição do ponto
(elemento do terreno) em relação ao ponto ou lugar de aplicação da sobrecarga, as modificações
serão de acréscimo ou decréscimo, maiores ou menores.
7.2.4 Hipótese simples ou antiga
A distribuição de pressões ou tensões pela hipótese simples ou antiga admite-se que a carga
“Q” aplicada à superfície se distribui, em profundidade segundo um ângulo (ϕ0), chamado ângulo
de espraiamento ou de propagação. A Figura 7.13 apresenta a distribuição de tensões no interior do
maciço segundo a hipótese simples. A propagação das pressões restringe-se à zona delimitada pelas
linhas de espraiamento MN.
Figura 7.13 - Distribuição de pressões pela hipótese simples.
Kogler e Scheidig (1948) sugerem valores para o ângulo de espraiamento segundo a tabela
abaixo:
Tipo de solo ϕ 0
Solos muito moles < 40°
Areias puras (coesão nula) 40° a 45°
Argilas de coesão elevada (rijas e duras) 70°
Rochas > 70°
Para fins práticos, a propagação de pressões, devido à sobrecarga, restringe à zona delimitada
pelas linhas de espraiamento. A hipótese simples contraria todas as observações experimentais
(feitas através de medições no interior do subsolo), pelas quais se verificou que a pressão distribuída
em profundidade não é uniforme, mas sim variável, em forma de sino.
A propagação das
pressões restringe-se
à zona delimitada
pelas linhas de
espraiamento MN.
Notas de Aula - Mecânica dos Solos 107
A faixa de validade para esta teoria restringe-se a:
a) sobrecargas provenientes de fundações muito rígidas e/ou estruturas rígidas (chaminés,
torres, obeliscos, blocos de máquinas) com tendência de recalques uniformes, as pressões
tendem à uniformidade;
b) profundidades muito grandes - achatamento do diagrama de pressões;
c) valor de ϕ0 a adotar - quanto mais resistente for o solo, tanto maior será o valor de ϕ0.
7.2.5 Teoria da elasticidade
A teoria matemática da elasticidade fundamenta-se nos estudos, entre outros, de Cauchy,
Navier, Lamé e Poisson, tendo suas equações fundamentais sido estabelecidas na década de 1820.
O estudo sobre a possível distribuição das tensões no solo, resultado da aplicação da teoria de
Boussinesq, baseia-se na teoria da elasticidade. A teoria de elasticidade linear é baseada no
comportamento elástico dos materiais, ou seja, na proporcionalidade entre as tensões (σ) e
deformações (ε), segundo a lei de Hooke. A razão σ / ε = E denomina-se módulo de elasticidade ou
módulo de Young. A correspondente expansão lateral do material terá valor ε = - µ . σ / E, onde
“µ” é o coeficiente de Poisson (para solos e rochas varia entre 0,2 e 0,4).
Em resumo a teoria da elasticidade admite:
a) material seja homogêneo (propriedades constantes na massa do solo);
b) material seja isotrópico (em qualquer ponto as propriedades são as mesmas independente
da direção considerada);
c) material seja linear-elástico (tensão e deformação são proporcionais)
Existem soluções para uma grande variedade de carregamentos.
7.2.5.1 Carga concentrada - Solução de Boussinesq
O estudo do efeito de cargas sobre o terreno foi estudado inicialmente por Boussinesq (1885),
através da teoria da elasticidade. Estudou o efeito da aplicação de uma carga concentrada sobre à
superfície de um semi-espaço infinito. (Figura 7.14)
Expressões:
3
5
2
3
' z
R
P
v ⋅
⋅⋅
⋅
=∆
π
σ
( )
( )⎥
⎦
⎤
⎢
⎣
⎡
+⋅
−
−
⋅⋅
=∆
zRRR
zrP
h
µ
π
σ
213
2
' 5
2
2
5
2
3
zr
R
P
⋅⋅
⋅⋅
⋅
=∆
π
τ
onde:
zr 22
+=R
µ = coeficiente de Poisson
Figura 7.14 - Carga concentrada.
x = r
P = Q
∆σ’h
∆σ’v
τ
Rz
N.T.
z
x
∆σ’v = σz
∆σ’h = σx
A
Notas de Aula - Mecânica dos Solos 108
Exemplo 5: Foi aplicado no perfil abaixo uma sobrecarga de 1500 kN na superfície do terreno.
Determine as tensões iniciais, os acréscimos de tensões devido à sobrecarga e as tensões finais no
ponto A.
Tensões iniciais:
σ‘v0 = γ . z = 19 . 3 = 57,0 kPa
σ‘h0 = k0 . σ‘v0 = 0,5 . 57 = 28,5 kPa
τ0 = 0
Acréscimo de tensão devido à sobrecarga
3
5
3
24,42
15003
' ⋅
⋅⋅
⋅
=∆
π
σ v = 14,1 kPa
( )
( )⎥
⎦
⎤
⎢
⎣
⎡
+
−
−
⋅⋅
=∆
324,4.24,4
5,0.21
24,4
333
2
1500
' 5
2
π
σ h = 14,1 kPa
2
5
33
24,42
15003
⋅⋅
⋅⋅
⋅
=∆
π
τ = 14,1 kPa
Tensões finais
σ‘vf = σ‘v0 + ∆σ‘v = 57 + 14,1 = 71,1 kPa
σ‘hf = σ‘h0 + ∆σ‘h = 28,5 + 14,1 = 42,6 kPa
τf = τ0 + ∆τ = 0 + 14,1 = 14,1 kPa
É importante observar que os solos, de modo geral, afastam-se das condições ideais de
validade da teoria de Boussinesq. Não são materiais elásticos, nem homogêneos, nem isotrópicos.
Entretanto, as diferenças entre os solos reais e o material ideal de Boussinesq não são de molde a
impedir a aplicação da teoria da elasticidade aos solos, desde que observados certos requisitos.
Requisitos para aplicabilidade da solução de Boussinesq (BARATA, 1993):
a) Deve-se haver compatibilidade nas deformações do solo. Portanto, as cargas aplicadas e
distribuídas não se aproximem da máxima resistência ao cisalhamento do solo. Fator de
segurança, no mínimo igual a 3, para haver proporcionalidade entre as tensões e deformações;
b) A resistência do solo deve ser constante, ao longo da profundidade (E = módulo de
elasticidade). Nas argilas (solos coesivos) esse aspecto é mais viável. Nas areias (solos
incoerentes), menos viável;
c) Solos muito heterogêneos (com presença de camadas de origem, constituição e resistência
muito diferentes) em contatos afastam-se muito do material de Boussinesq. Usar a solução de
Westergaard, item 7.2.6;
d) Somente cargas na superfície. Cargas abaixo da superfície - teoria de Mindlin;
r = 3 m
P = 1500 kN
R
N.T.
z
γ = 19 kN/m3
µ = 0,5
K0 = 0,5
R = 4,24 m
3 m
A
Notas de Aula - Mecânica dos Solos 109
e) Teoria admite que o material solicitado tenha resistência à tração e ao cisalhamento (ϕo = 90o
)
Nos solos argilosos o erro é menor;
f) A solução de Boussinesq é para carga concentrada, que na prática não ocorre nas fundações
reais. A teoria só se aplica sem erros grosseiros, quando:
- Carga sobre área circular, z > 3 d (d = diâmetro);
- Carga sobre área retangular, z > 2,5 lado menor;
7.2.5.2 Carga linear - Solução de Melan
A partir das expressões de Boussinesq para carga concentrada, usando o princípio da
superposição (o efeito do conjunto considerado como a soma dos efeitos de cada um dos
componentes) e por meio de integração matemática, foi possível que vários pesquisadores
chegassem a expressões para o cálculo da distribuição causada por cargas lineares e áreas
carregadas.
As seguintes expressões foram propostas por Melan (Figura 7.15)
( )222
3
2
'
xz
zq
v
+
⋅⋅
=∆σ
( )222
2
2
'
xz
zxq
h
+
⋅⋅⋅
=∆σ
( )222
2
2
xz
xzq
xy
+
⋅⋅⋅
=τ
Figura 7.15 - Solução de Melan.
7.2.5.3 Área carregada - Carga uniforme sobre uma placa retangular de comprimento infinito
Em placas retangulares em que uma das dimensões é muito maior que a outra, os esforços
induzidos na massa de solo podem ser determinados através das expressões propostas por Carothers
e Terzaghi, conforme o esquema da Figura 7.16.
∆σ‘v = P (α + sen α . cos (α + 2δ))/π
∆σ‘h = P (α - sen α . cos (α + 2δ))/π
∆τ = P (sen α . sen (α + 2δ))/π
P = carga distribuída por unidade de área
Figura 7.16 - Solução de Carothers
q
z
∆σ‘v
A
x
∆σ‘h
τ
•
δ
α
P = ∆qs
x
z A (x, z)
B = 2b
∆σ‘h
∆σ‘v
Notas de Aula - Mecânica dos Solos 110
O bulbo de pressões correspondentes a esse tipo de carregamento é apresentado na Figura
7.17, onde:
b = semi-largura
z = profundidade vertical
x = distância horizontal do centro
∆qs = P = carregamento
∆σ1 = ∆σ‘v = tensão vertical efetiva
∆σ3 = ∆σ‘h = tensão horizontal efetiva
Para determinar as tensões induzidas obtém-se do ábaco o fator de influência (I). Valor este
que multiplicado pelo carregamento na superfície, nos dará o acréscimo de tensão no ponto
desejado, conforme as expressões: ∆σ‘v = P . I1 e ∆σ‘h = P . I3
Figura 7.17 - Carregamento uniformemente distribuído sob uma área retangular de comprimento
infinito.
Notas de Aula - Mecânica dos Solos 111
Exemplo 6: Determine os acréscimos de tensão vertical e horizontal nos pontos assinalados da
figura abaixo
Pontos x/b z/b I1 ∆σ‘v I3 ∆σ‘h
A 0 1 0,82 164 0,18 36
B 1 1 0,64 128 0,08 16
C 2 1 0,28 56
D 0 2 0,55 110
E 1 2 0,47 94
F 2 2 0,33 66
G 0 3 0,39 78
H 1 3 0,37 74
I 2 3 0,28 56
7.2.5.4 Área carregada - Carregamento uniformemente distribuído sobre uma placa retangular
Para o caso de uma área retangular de lados a e b uniformemente carregada, as tensões em um
ponto situado a uma profundidade z, na mesma vertical do vértice. Na Figura 7.18 são dados,
segundo Holl (1940), as expressões para a determinação das tensões induzidas.
( )⎥
⎦
⎤
⎢
⎣
⎡
+⋅
⋅⋅
+
⋅
⋅
=∆
−− 2
2
2
1
332
' RR
R
zba
Rz
ba
arctg
P
v
π
σ
⎥
⎥
⎦
⎤
⎢
⎢
⎣
⎡
⋅
⋅⋅
+
⋅
⋅
=∆
3
2
232
'
RR
zba
Rz
ba
arctg
P
h
π
σ
⎥
⎥
⎦
⎤
⎢
⎢
⎣
⎡
⋅
⋅
−=∆
3
2
2
2
12 RR
az
R
aP
π
τ
Figura 7.18 - Placa retangular.
Pode-se utilizar o ábaco da Figura 7.19, a fim de determinar o acréscimo de tensão vertical
(∆σ‘v = σz) no vértice de uma placa retangular carregada uniformemente.
Onde:
m = b/z
n = a/z
temos, σz = ∆σ‘v = P . I
∆qs = P = 200kPa
x
A B C
D E F
G H I
1 m
1 m
1 m
1 m
1 m 1 m
P
z
∆σ‘v = σz
A
x
∆σ‘h = σx
b
a
222
3
22
2
22
1
zbaR
zbR
zaR
++=
+=
+=
Notas de Aula - Mecânica dos Solos 112
m = 0,1
m = 0,2
m = 0,3
m = 0,4
m = 0,5
m = 0,6
m = 0,7
m = 0,8
m = 0,9
m = 1,0
m = 1,2
m = 1,4
m = 1,6
m = 1,8
m = 2,0
m = 2,5m = 3,0
0,00
0,01
0,02
0,03
0,04
0,05
0,06
0,07
0,08
0,09
0,10
0,11
0,12
0,13
0,14
0,15
0,16
0,17
0,18
0,19
0,20
0,21
0,22
0,23
0,24
0,25
0,1 1,0 10,0
n
Coeficientedeinfluência-I
P
σ‘v = σz
b
a
z
A σ‘h =
x
m=b/z
n = a/z
σz = P.I
Figura 7.19 - Carregamento uniformemente distribuído sob uma área retangular.
Notas de Aula - Mecânica dos Solos 113
Exemplo 7: Calcular o acréscimo de carga, na vertical do ponto A, a profundidade de 5,0 m. A
placa superficial tem 4,0 m x 10,0 m, e esta submetida a uma pressão uniforme de 340 kPa.
a = 10m z = 5 m
b = 4m
ábaco: m = 4/5 = 0,8 I = 0,181
n = 10/5 = 2
∆σ‘v = P x I = 340 x 0,181 = 61,5 kPa
Utilizando a expressão para o acréscimo de tensão vertical, temos:
R1 = (102
+52
)0,5
= 11,18
R2 = (42
+ 52
)0,5
= 6,40
R3 = (102
+ 42
+52
)0,5
= 11,87
⎥
⎦
⎤
⎢
⎣
⎡
+⋅
⋅⋅
+
⋅
⋅
=∆ −−
)4,618,11(
87,11
5410
87,115
410
2
340
' 22
arctgv
π
σ = [ ]546,0674,0
2
340
+arctg
π
[ ]radradv 546,0593,0
2
340
' +=∆
π
σ = kPav 5,61340181,0' =×=∆σ
7.2.5.5 Área carregada - Carregamento uniformemente distribuído sobre uma área circular
(tanques e depósitos cilíndricos, fundações de chaminés e torres)
As tensões induzidas por uma placa uniformemente carregada, na vertical que passa pelo
centro da placa, podem ser calculadas por meio da integração da equação de Boussinesq, para toda
área circular. Esta integração foi realizada por Love, e na Figura 7.19 têm-se as características
geométricas da área carregada. O acréscimo de tensão efetiva vertical induzida no ponto A, situado
a uma profundidade z é dada pela expressão:
( ) ⎥
⎥
⎥
⎦
⎤
⎢
⎢
⎢
⎣
⎡
⎥
⎥
⎥
⎦
⎤
⎢
⎢
⎢
⎣
⎡
+
−⋅==∆
2/3
2
1
1
1'
z
R
Pzv σσ
Onde:
R = raio da área carregada
z = distância vertical
x = distância horizontal a partir do
centro da área carregada
P = ∆qs = carregamento
Figura 7.20 - Área circular.
z
∆σ‘v = σz
A
x
∆σ‘h = σx
10 m
4 m
340 KPa
P =∆qs
x
z
∆σ’v
R
z
A
Notas de Aula - Mecânica dos Solos 114
Para pontos situados fora da vertical que passa pelo centro da placa, o acréscimo de tensão
efetiva vertical poderá ser calculado pelo ábaco da Figura 7.21, que fornece isóbaras de ∆σ‘v/P, em
função do afastamento e da profundidade relativa x/R e z/R, respectivamente.
Figura 7.21 - Carregamento uniformemente distribuído sob uma área circular.
Notas de Aula - Mecânica dos Solos 115
Exemplo 8: Calcular o acréscimo de tensão vertical nos pontos A e B transmitido ao terreno por um
tanque circular de 6,0 m de diâmetro, cuja pressão transmitido ao nível do terreno é igual a 240 kPa.
Utilizando o ábaco, temos:
Ponto X/R Z/R I ∆σ‘v (kPa)
A 0 1 0,64 153,5
B 1 1 0,33 79,2
A tensão final no ponto A será:
σ‘vfA = 16,5 . 3 + 153,5 = 203,0 kPa
7.2.5.6 Área carregada - Carregamento Triangular
Possui grande aplicação na estimativa de tensões induzidas no interior de massa de solo por
aterros, barragens, etc. Existem soluções para diversos tipos de carregamento (triângulos retângulos,
escaleno, trapézios, etc.).
Gráfico de Osterberg - determina a tensão vertical (∆σ‘v) devido a uma carga em forma de
trapézio de comprimento infinito (Figura 7.22).
1' Iv ⋅∆=∆ σσ
a / z
I1 → Coeficiente de Influência
b / z
Gráfico de Carothers - determina a tensão vertical e horizontal (∆σ1 = ∆σ‘v, ∆σ3 = ∆σ‘h) devido a
uma carga em forma de triângulo isósceles de comprimento infinito. (Figura 7.23).
x / a v'1 σσ ∆=∆
z / a h'3 σσ ∆=∆
P =∆qs
x
z
∆σ’v
b
z
a
P =∆qs
x
z
∆σ’v
a
z
a
P = 240
x
z
∆σ’vfA
R = 3 m
3 m
∆σ’vfB
A B
γ = 16,5 kPa
Notas de Aula - Mecânica dos Solos 116
Gráfico de Fadum - determina a tensão vertical (∆σ‘v) sob um carregamento trinagular de
comprimento finito. (Figura 7.24)
m = b1 / z
Iz → Coeficiente de Influência
n = a1 / z
Figura 7.22 - Carregamento trapezoidal de comprimento infinito - Gráfico de Osterberg.
x
∆σ’v
a1z
∆σ
b1
Notas de Aula - Mecânica dos Solos 117
Figura 7.23 - Carregamento triangular de comprimento infinito - Gráfico de Carothers.
Figura 7.24 - Carregamento triangular de comprimento finito - Gráfico de Fadun
Notas de Aula - Mecânica dos Solos 118
7.2.5.7 Área carregada - Carregamento uniformemente distribuído sobre uma superfície de forma
irregular. (gráfico circular de Newmark)
O gráfico circular de Newmark é baseado na equação de Love
( ) ⎥
⎥
⎥
⎦
⎤
⎢
⎢
⎢
⎣
⎡
⎥
⎥
⎥
⎦
⎤
⎢
⎢
⎢
⎣
⎡
+
−⋅==∆
2/3
2
1
1
1'
z
R
Pzv σσ ⇒ IPz ⋅=σ ⇒
P
z
I
σ
=
A Figura 7.25 apresenta a construção gráfica de Newmark que atribui valores para I e calcula-
se o raio da placa necessário para produzir o acréscimo de pressões à profundidade z.
I = σz/P R/z
0,0 0,000
0,1 0,270
0,2 0,400
0,3 0,518
0,4 0,637
0,5 0,766
0,6 0,918
0,7 1,110
0,8 1,387
0,9 1,908
1,0 ∞
Figura 7.25 - Ábaco circular de Newmark.
- Dividindo cada círculo em 20 partes iguais, têm-se:
σz = 0,1 P
z = 0,1 . P / 20 = 0,005 P
- Desenha-se a planta da superfície carregada na escala do gráfico (AB = z)
- O ponto onde se quer determinar o acréscimo de pressão deve coincidir com o centro do gráfico.
O acréscimo de tensão vertical na profundidade z será:
INPzv ⋅⋅==∆ σσ '
onde:
P = carregamento externo
N = número de fatores de influência (quadradinhos)
I = unidade de influência
R = 0,400 z
R = 0,270 z
INFLUÊNCIA = 0,005p
Notas de Aula - Mecânica dos Solos 119
Exemplo 9: Com os dados da figura abaixo calcule, pelo gráfico de Newmark, a pressão vertical a 3
m de profundidade, abaixo do ponto M, para a placa (a) e a 2 m de profundidade para a placa (b).
=∆ Av'σ 3 . 30 . 0,005 = 0,45 kg/cm2
= 45 kN/m2
=∆ Bv'σ 1 . 83 . 0,005 = 0,42 kg/cm2
= 42 kN/m2
7.2.6 Solução de Westergaard
Alguns terrenos, devido a condições especiais de sua origem (por exemplo, o caso de certas
argilas sedimentares), apresentam dispersas, em sua massa, intrusões ou lentes de material diverso,
de granulometria mais grossa (siltes, areias, pedregulhos etc.) que acarretam aumento de resistência
a deformações laterais. Soluções desse tipo tornam inaplicáveis as expressões de Boussinesq em
seu aspecto original, pois esses terrenos se afastam ponderavelmente das hipóteses que servem de
base ao desenvolvimento teórico. Westergaard (1938) resolveu este problema específico, aplicando
a teoria da elasticidade, mas imaginando que o solo estudado se constituísse de numerosas
N ≅ 30
p = 3 kg/cm3
300300
M
(a)
150300
z = 3 m
Escala 1:50
Valor da unidade de influência = 0,005
A B
AB = z = 3m
300
300
200100
M
p = 1 kg/cm3
(b)
z = 2 m
200100
Escala 1:100
Valor da unidade de influência = 0,005
A B
AB = z = 2m
N ≅ 83
Notas de Aula - Mecânica dos Solos 120
membranas horizontais, finas, muito juntas uma das outras e de grande resistência a deformações
horizontais, sem inferir, todavia, na deformabilidade vertical do solo ensanduichado. Em outras
palavras, supôs, em sua análise, um material anisótropo, mas homogêneo e com um coeficiente de
Poisson muito baixo, chegando à seguinte expressão para a tensão vertical num ponto qualquer da
massa de solo, devido à ação de uma carga pontual Q:
( )
2/3
2
2
2
1
2
'
⎥
⎥
⎥
⎦
⎤
⎢
⎢
⎢
⎣
⎡
+⋅⋅
⋅
==∆
z
xCz
QC
zv
π
σσ , onde
µ
µ
22
21
−
−
=C
Para µ = 0 (solo indeformável no sentido horizontal), obtém-se: C = ½ e os valores de σz, de
pontos diretamente sob a carga, são os maiores possíveis. Compara-se com a expressão de
Boussinesq, temos:
N
z
Q
zv ⋅==∆ 2
' σσ
Esta expresão e a de Westergaard estão representadas na Figura 7.26.
A expressão de Westergaard integrada e fazendo-se µ = 0, permite obter as tensões causadas
no solo, abaixo de uma área carregada uniformemente. A Figura 7.27 apresenta o ábaco para o
cálculo dessas tensões. Para condições do terreno semelhantes às supostas no desenvolvimento
téorico de Westergaard, dar-se-á preferência à sua expressão. Note-se que para cargas pontuais,
sendo x/z menor que 0,8 e para áreas uniformementes carregadas com (a/z) e (b/z) menores que a
unidade, considerando µ = 0, as expressões de Westergaard dão resultados 2/3 das de Boussinesq.
0,0
0,1
0,2
0,3
0,4
0,5
0,0 0,5 1,0 1,5 2,0 2,5 3,0
R / z
N
N
z
Q
Z ⋅= 2
σ
2
3
2
1
2
3
⎥
⎥
⎦
⎤
⎢
⎢
⎣
⎡
⎟
⎠
⎞
⎜
⎝
⎛
+
⋅=
z
R
NB
π
2
3
2
21
1
⎥
⎥
⎦
⎤
⎢
⎢
⎣
⎡
⎟
⎠
⎞
⎜
⎝
⎛
⋅+
=
z
R
NW
π
N B
N W
Figura 7.26 - Ábaco de Boussinesq (curva NB ) e Ábaco de Westergaard (curva NW ).
Notas de Aula - Mecânica dos Solos 121
Figura 7.27 - Ábaco de Westergaard.
7.3 Bulbo de Pressões
Um aspecto interessante da distribuição de tensões pode ser observado com a noção do
chamado bulbo de pressões. A distribuição ao longo de planos horizontais em diversas
profundidades tem a forma de sino.
O lugar geométrico de pontos de igual pressão em qualquer profundidade é uma superfície de
revolução, cuja seção vertical (pelo eixo da carga tem o aspecto mostrado na Figura 7.28). É
possível traçar-se um número infinito de isóbaras desse tipo, cada qual correspondendo a uma
pressão (∆σ‘v = σz = constante). A tensão, em qualquer ponto no interior da massa limitada pela
isóbara é maior que σz; qualquer ponto fora da isóbara tem tensão menor que σz.
Para efeitos práticos, considera-se que valores menores que (0,1 p0) não têm efeito na
deformabilidade do solo de fundação. E, portanto, a isóbara (∆σ‘v = σz = 0,1 p0) como que limitaria
a zona do solo sujeita às deformações. A figura formada por essa isóbara denomina-se bulbo de
pressões.
Figura 7.28 - Bulbo de pressões.
Notas de Aula - Mecânica dos Solos 122
7.3.1 Aplicações práticas do conceito de bulbo de pressões (BARATA, 1993)
Pelos resultados experimentais e pelas expressões de ∆σ‘v = σz para o caso de áreas
carregadas, pode-se depreender que, quanto maiores às dimensões da fundação, maiores serão as
tensões a uma dada profundidade, ou, em outras palavras, quanto maiores às dimensões da placa
carregada, maior a massa de terra afetada pelo bulbo de pressões. Inicialmente, convém que se saiba
que o bulbo de pressões atinge uma profundidade Zo = α . B, conforme esta representado na figura
7.29, sendo B a largura (menor dimensão) da área carregada e α um fator que depende da forma
desta área. Valores de α são fornecidos na tabela na mesma figura, calculados pela teoria da
elasticidade, para o caso de base à superfície do terreno (no caso de base abaixo da superfície, os
valores de α serão menores que os da tabela, deles não diferindo substancialmente, todavia). Em
solos arenosos os valores da tabela deverão ser acrescidos de aproximadamente 20%.
Figura 7.29 - Aplicação do bulbo de pressões.
Exemplo 10: Num terreno como visto na figura abaixo, típico dos existentes no centro da cidade do
Rio de Janeiro, é interessante observar a diferença entre os efeitos de uma pequena construção (área
quadrada, de 4,5 m x 4,5 m) e os de uma construção maior (área quadrada, de 10 m x 10 m).
O bulbo de pressões da pequena construção fica restrito à camada de areia, ou seja, praticamente
não provocaria recalques sensíveis; o bulbo da grande construção, por outro lado, influenciaria a
camada de argila mole (pressão no topo seria 30% de Po), acarretando adensamento e recalques
consequentes.
Forma de área
carregada
α
Circular ou quadrada
(L/B=1)
~ 2,0
1,5 ~ 2,5
2 ~ 3,0
3 ~ 3,54
Retangular 4 ~ 4,0
L . B 5 ~ 4,25
10 ~ 5,25
20 ~ 5,50
Infinitamente
longa
∞ ~ 6,50
Planta
DouB
D ou B
L/2
S
S
L/2
L
N.T.
Seção SS
P0
0,10 . P0
z0 = α . B
B
Notas de Aula - Mecânica dos Solos 123
7.4 Pressão de Contato
São as pressões sob a fundação e sobre o solo. Portanto, são muito complexas a sua
distribuição e interferem a natureza do solo (argiloso ou arenoso), a rigidez da fundação (expressa
pelo produto E . I, do módulo de elasticidade pelo momento de inércia), a profundidade.
Sob fundações flexíveis - Devido à flexibilidade das fundações, as pressões de contato são
uniformes e idênticas às que são transmitidas pelas fundações (a fundação acomoda-se
perfeitamente às deformações do solo). Se as pressões são uniformes, os recalques, ao contrário,
não são uniformes. Verifica-se na Figura 7.30, que os solos coesivos (argilas) recalcam mais no
centro da área carregada e menos nas bordas, o que se justifica, tendo-se em vista os valores dos
recalques dados pelas expressões da teoria da elasticidade (onde as tensões são maiores no centro da
área carregada). Os solos coesivos são os que mais se aproximam dos materiais ideais da teoria da
elasticidade (homogêneo, isotrópico e elástico). Para os solos não coesivos (areias), o módulo de
elasticidade aumenta com o confinamento e, portanto, cresce da zona das bordas para a zona central
da área carregada; daí os recalques serem menores mo centro e maiores na bordas. Para fundações
flexíveis é usual admitir que a distribuição de pressões se faça proporcionalmente às deformações.
Figura 7.30 - Distribuição das pressões de contato sob fundações flexíveis. (a) solos coesivos; (b).
solos não coesivos.
Sob fundações rigídas - São indeformáveis em relação ao solo, impondo uma deformação
contante ao solo sob a superfície de carga. As pressões de contato, nesta situação, não poderão ser
uniformes. Ao comparar-se com o que ocorre sob fundações flexíveis, verifica-se que, para se obter
um recalque uniforme, terá que haver uma redistribuição das pressões, como esta representado na
Figura 7.31, com diminuição no centro e aumento nas bordas para solos coesivos e, ao contrário,
aumento no centro e diminuição na periferia para solos não coesivos..
Figura 7.31 - Distribuição das pressões de contato sob fundações rigídas. (a) solos coesivos; (b).
solos não coesivos.
Notas de Aula - Mecânica dos Solos 124
7.5 Exercícios
1) Dado o perfil geotécnico abaixo, calcule: a) as tensões devidas ao peso próprio do solo (σv e
σ’v) e as pressões neutras; b) adotando o valor de k0 igual a 0,5 para todas as camadas,
determine as tensões horizontais efetivas e totais; c) faça um diagrama da variação das
tensões calculadas nos itens a e b, com a profundidade.
2) Para o perfil geotécnico abaixo, determine: a) o acréscimo de tensão vertical para um
depósito circular nas profundidades indicadas; b) a tensão efetiva final final aos 7,5m e aos
90,0 m de profundidade.
3) Calcular a tensão induzida por uma carga pontual de 1500 t a um ponto situado a 5 m de
profundidade afastado 5,3 m da aplicação da carga.
4) Calcular a tensão induzida (pressão transmitida) por uma carga circular (raio de 5 m) com
100 kN/m2
a pontos situados a 5 m de profundidade, sob o centro da placa e afastado a 6m
do centro da placa.
N.T.A
0,0 m
γ = 15,0 kN/m3
N.A.
- 2,0 m
- 3,0 m
- 4,5 m
B
C
D
γ = 17,0 kN/m3
γ = 15,0 kN/m3
- 6,0 m
E
γ = 17,5 kN/m3
P = ∆qs = 25 ton/m2
∅ = 45 m
7,5 m
15,0 m
22,5 m
30,0 m
45,0 m
60,0 m
75,0 m
90,0 m
N.T.
γ = 2 ton/m2
Notas de Aula - Mecânica dos Solos 125
5) Calcular o acréscimo de tensão produzida pela placa da figura abaixo, carregada com 78
kN/m2
, a um ponto situado a 5 m de profundidade abaixo do ponto O, indicado na figura,
sabendo-se que a1 = 3 m; a2 = 4 m; b1 = 1 m; b2 = 2 m;
6) Dada a situação da planta abaixo, calcule o acréscimo de tensão devido a sapata carregada
com 480 kN/m2
a 5 m de profundidade no ponto A.
7) Dado o perfil geotécnico abaixo, traçar o diagrama das pressões totais, efetivas e neutras
A
1 m
3 m
9 m 4 m
y
x
a1
a2
b1 b2
z
II
I
III
IV
N.T.A+ 5,0 m
N.A.
+ 2,0 m
- 2,0 m
- 7,0 m
B
C
D
- 6,0 m E
Argila mole γSAT = 17,4 kN/m3
Areia grossa γ SAT = 23,8 kN/m3
Argila dura γ SAT = 20,5 kN/m3
Rocha
Areia fina γ = 19,4 kN/m3
Notas de Aula - Mecânica dos Solos 126
8) Traçar o diagrama das pressões totais, efetivas e neutras relativo ao perfil geotécnico abaixo
9) Determinar, no perfil abaixo, a cota ou profundidade em que teremos σ’v = 7,77 t/m2
= 77,7
kN/m2
.
10) Calcular o acréscimo de pressão causado por uma placa crcular, com 5 m de diâmetro,
carregada com 20 t/m2
, em pontos situados sob o seu eixo, a 2,5; 5,0 e 10,0 m de
profundidade e traçar o respectivo diagrama.
N.T.A+ 2,0 m
N.A.
- 1,0 m
- 6,0 m
B
C
D- 12,0 m
Argila saturada γs = 25,0 kN/m3
e = 0,8
Areia média saturada γ s = 26,6 kN/m3
w = 11%
Rocha
Areia fina argilosa γd = 13,2 kN/m3
Sr = 100% γs = 26,4 kN/m3
N.T.A+ 0,0 m
N.A.- 1,0 m
- 3,0 m
B
C
D- 10,0 m
Areia fina γs = 26,0 kN/m3
e = 0,8
Argila preta γ s = 26,6 kN/m3
Sr = 100% e = 1,08
Rocha
Argila cinza arenosa γd = 15,2 kN/m3
- 6,0 m C
Areia grossa saturada γ SAT = 19,8 kN/m3
Notas de Aula - Mecânica dos Solos 127
11) Dada a placa circular em forma de anel, abaixo representada, calcular o acréscimo de
pressão nos pontos A, B, C e D indicados, situados a 2,5m de profundidade.
12) Determinar a variação de pressão à profundidade de 4,0 m provocada por uma placa circular
com 8,0 m de diâmetro, carregada com 724 toneladas, conforme indica esquema abaixo e
traçar o respectivo diagrama.
13) Calcular a pressão transmitida ao ponto A pelo atero dado no esquema abaixo.
A B C D
2m 3m 4m
EM PLANTA
A B C D
Prof. (m)
- 2,5
EM PERFIL
2m 2m 4m 4m
A B C D E
Q = 724 t
x
0 m
- 4 m
•
δα
hat
z
A
γ = 22 kN/m3
- 9 m
0 m
+ 3 m
α = 28,5º
β = 56,0º
δ = 42,0º
β
Notas de Aula - Mecânica dos Solos 128
14) Dada a situação em planta de um ponto A, calcular a influência da sapata carregada com 480
kN/m2 a 5 metros de profundidade.
15) Calcular o acréscimo de pressão sob os pontos A, B, C e D, abaixo indicados, devido à
construção do aterro dado e traçar o respectivo diagrama.
16) Três pilares afastados 6,0 m de eixo a eixo, transmitem as cargas indicadas no perfil abaixo.
Considerando as ditas cargas como puntiformes, calcular as pressões transmitidas ao meio
da camada de argila, sob cada pilar.
A
9 m 4m
1m
3m
3m 12m 3m
A B C D
0 m
- 6 m
γ = 22 kN/m3
3m 3m
+ 3 m
6m 6m
- 1,5 m
Areia grossa compacta
0 m
P1 = 48 t P1 = 64 t P3 = 80 t
- 3,5 m
- 7,5 m
Areia fina, medianamente compacta
Argila cinza média
Notas de Aula - Mecânica dos Solos 129
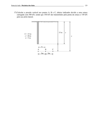
17) Calcular a pressão vertical nos pontos A, B e C, abaixo indicados devido a uma estaca
carregada com 500 kN, sendo que 350 kN são transmitidos pela ponta da estaca e 150 kN
pelo seu atrito lateral.
A B C
15 m
x
5m 5m
c
z
C = 15 m
z = 20 m
x = 5 m

06 tensoes no solo ojo-ejercicios

  • 1.
    Notas de Aula- Mecânica dos Solos 93 UNIDADE 7 – PRESSÕES E TENSÕES NO SOLO 7.1 Introdução Em grande parte dos problemas de engenharia de solos, é necessário o conhecimento do estado de tensões em pontos do subsolo, antes e depois da construção de uma estrutura qualquer. As tensões na massa de solo são causadas por cargas externas ou pelo próprio peso do solo. As considerações acerca dos esforços introduzidos por um carregamento externo são bastante complexas e seu tratamento, normalmente se dá, a partir das hipóteses formuladas pela teoria da elasticidade. 7.2 Tensões geostáticas (tensões iniciais no terreno) Dado o perfil geotécnico da Figura 7.1, no qual o nível do terreno (N.T.) é horizontal, a natureza do solo não varia horizontalmente e não há carregamento externo (cargas aplicadas e distribuídas) próxima a região considerada, caracteriza uma situação de tensões geostáticas. Quando a superfície do terreno for horizontal, em um elemento de solo situado a uma profundidade “z” da superfície não existirá tensões cisalhantes em planos verticais e horizontais, portanto, estes são planos principais de tensões. Figura 7.1 - Perfil geotécnico Em uma situação de tensões geostáticas, portanto, a tensão normal vertical inicial (σvo) no ponto “A” pode ser obtida considerando o peso do solo acima do ponto “A” dividido pela área. ( ) z b zb A W v ⋅= ⋅⋅ == γ γ σ 2 2 0 onde: W = γ . V (peso do prisma) V = b2 . z (volume do prisma) A = b2 (área do prisma) γ = peso específico natural do solo σh σv σh σ = tensão normal (perpendicular ao plano) τ = tensão cisalhante (no plano) N.T. Prisma A (elemento de solo)b b Z γ Solo seco S = 0 %
  • 2.
    Notas de Aula- Mecânica dos Solos 94 Se o solo acima do ponto “A” for estratificado, isto é, composto de “n” camadas, o valor de σv0 é dado pelo somatório de γi . zi, onde “i” varia de 1 a n. ∑= ⋅= n i iziv 1 0 )()(γσ Quando o peso específico da camada não for constante e se conhecer a sua lei de variação com a profundidade, a tensão poderá ser calculada: dzzv z ⋅= ∫0 0 )(γσ 7.1.1 Água no solo O ingresso de água no solo, através de infiltração no terreno e a ocorrência de um perfil estratificado, com uma sucessão de camadas permeáveis e impermeáveis, permitem a formação de lençóis freáticos ou artesianos. Para entender estes fenômenos, pode-se imaginar que no local foram instalados três tubos, A, B e C (Figura 7.2 - Ortigão, 1993), o primeiro atravessando a camada inicial permeável, seguindo por uma camada de solo impermeável e atingindo a camada inferior, onde ocorre lençol confinado, artesiano ou sob pressão. Estes nomes se aplicam porque o nível de água (N.A.) do tubo A está acima do nível do terreno (N.T.). O tubo B encontra um lençol livre, situação que é verificada pelo operador no campo, pois a profundidade do nível d’água no tubo permanece estacionária. Já a perfuração feita para instalar o tubo C atinge inicialmente o lençol livre. Avançando-a, pode-se observar que a água subirá no tubo, indicando que se atingiu também o lençol artesiano inferior. A Figura 7.2 apresenta também um caso de lençol pendurado ou cativo, ou seja, preso sobre uma fina camada de material impermeável. Se uma perfuração for aí realizada, ocorrerá perda d’água repentina no furo assim que a perfuração atingir a camada permeável inferior. Considerando um maciço saturado com água em condições hidrostáticas (isto é, sem fluxo) a profundidade na qual a pressão na água é atmosférica é o chamado nível d’água natural (N.A.) ou lençol freático. Portanto, abaixo do nível d’água, a pressão na água, ou poro-pressão ou pressão neutra (u0) é positiva. Sendo definida pela expressão: u0 = γw . zw onde: u0 = pressão neutra ou poro-pressão γw = peso específico da água, tomado igual a 10 kN/m3 = 1g/cm3 zw = profundidade em relação ao nível da água. A água exerce pressão de igual valor, mesma direção e sentido contrário, portanto, a resultante é nula. A pressão na água se transmite de um ponto para outro do solo, através do contato entre o líquido contido nos vazios do solo. No perfil geotécnico da Figura 7.3, a tensão normal vertical inicial (σvo) no ponto “A” pode ser obtido considerando o peso do solo saturado acima do ponto “A”, dividido pela área. Portanto, temos: σv0 = γ sat . z
  • 3.
    Notas de Aula- Mecânica dos Solos 95 Figura 7.2 - Perfil de solo estratificado com diversos níveis de água. Figura 7.3 - Perfil geotécnico. Solo saturado 7.1.2 Tensão vertical total A tensão vertical total inicial no ponto “A”, do perfil de solo da Figura 7.4, é: σv0 = γ . z1 + γ sat . z2 e a poro-pressão ou pressão neutra no mesmo ponto é: u0 = γw . zw Figura 7.4 - Perfil de solo. N.T. Prisma A (elemento de solo)b b Z γsat Solo saturado S = 100% N.A. N.T. A Z1 γsat N.A.γ Z2 Zw
  • 4.
    Notas de Aula- Mecânica dos Solos 96 7.1.3 Princípio das tensões efetivas Em 1925, Karl Terzaghi definiu que o comportamento dos solos saturados quando à compressibilidade e à resistência ao cisalhamento depende fundamentalmente da pressão média intergranular denominado de tensão efetiva (tensão grão a grão), foi uma das maiores contribuições à engenharia e é considerado o marco fundamental do estabelecimento da Mecânica dos Solos com bases científicas independentes. A comprovação desse princípio foi feita por Terzaghi de maneira muito simples, utilizando um tanque com solo saturado e água. Aumentando o nível da água no tanque, a pressão total (σv0) também aumenta no solo. Entretanto, não se observa qualquer diminuição de volume no solo, o que vem comprovar que seu comportamento é totalmente independente das tensões totais. Nos solos saturados (S = 100%) parte das tensões normais é suportada pelo esqueleto sólido (grãos) e parte pela fase líquida (água), portanto, tem-se que: σ = σ’ + u onde: σ = tensão total σ’ = tensão efetiva u = pressão neutra Exemplo 1: Calcule as tensões total, neutra e efetiva para os pontos assinalados (tensões verticais). Faça um gráfico da variação da tensão por profundidade. 47,0 135,2 177,7 42,0 67,0 47,0 93,2 110,7 0 20 40 60 80 100 120 140 160 180 200 TENSÕES - (kN/m2) PROFUNDIDADE-(m) Tensão total Pressão neutra Tensão efetiva Profundidade Tensão total (kN/m2 ) Pressão neutra (kN/m2 ) Tensão efetiva (kN/m2 ) Pontos (m) σv0 = γ . z1 + γ sat . z2 u0 = γw . zw σ‘v0 = σv0 – u0 A 0 0 0 0 B 2,8 16,8 . 2,8 = 47,0 0 47 - 0 = 47,0 C 7,0 47 + 21 . 4,2 = 135,2 4,2 . 10 = 42,0 135 - 42 = 93,2 D 9,5 135 + 17 . 2,5 = 177,7 42 + 10 . 2,5 = 67,0 177,5 - 67,5 = 110,7 N.T.A 0,0 m γ = 16,8 kN/m3 N.A. - 2,8 m - 7,0 m - 9,5 m B C D γ = 21,0 kN/m3 γ = 17,0 kN/m3 argila areia silte
  • 5.
    Notas de Aula- Mecânica dos Solos 97 7.1.4 Solos submersos Em solos submersos (portanto saturados) define-se o peso específico submerso (γsub ou γ‘) que permite calcular a tensão vertical efetiva (σ‘v0), em qualquer plano do solo submerso (Figura 7.5). A tensão total (σv0) é: σv0 = γw . z1 + γsat . z u0 = γw . zw = γw (z1 + z) Desta forma a tensão efetiva será: σ‘v0 = σv0 - u0 σ‘v0 = γw . z1 + γsat . z - γw (z1 + z) σ‘v0 = γw . z1 + γsat . z - γw . z1 - γw . z σ‘v0 = γsat . z - γw . z = (γsat - γw) . z como, γsub = γsat - γw, temos: σ‘v0 = γsub . z Esta equação é independente de zw, portanto a pressão efetiva não varia com a espessura da lâmina de água. Figura 7.5 - Perfil de solo submerso 7.1.5 Solos não saturados (solos parcialmente saturados) Para solos com 0 < S (grau de saturação) < 100 e que terá em seus vazios, dois fluídos, geralmente ar e água, está situação difere da anterior, em face das seguintes alterações: - não há uma continuidade da coluna d’água - a pressão neutra total é a soma da pressão na fase gasosa mais a pressão na fase líquida e a equação σ‘ = σ - u poderá ser colocada na forma proposta por Bishop (1959). σ‘ = σ - uar + χ (uar - uw) onde: uar = pressão na fase gasosa uw = pressão na fase líquida χ = coeficiente que varia de 0 (solos secos) a 1 (solos saturados). O valor de χ, além de ser muito influenciado pelo grau de saturação do solo, sofre influência também da estrutura, do ciclo de inundação-secamento e de alterações havidas no estado de tensões. N.T. A Z1 γsat N.A. γw (lâmina de água) Z Zw
  • 6.
    Notas de Aula- Mecânica dos Solos 98 7.1.6 Pressões efetivas em condições hidrodinâmicas As tensões efetivas verticais em condições hidrodinâmicas são calculadas pela equação: σ‘ = σ - u Nesta equação o valor da poro-pressão (u) é estimado ou medido (in situ) através de piezômetros. Um desses instrumentos, conhecido como o piezômetro Casagrande ou tubo aberto está esquematizado na Figura 7.6. O equipamento consta de uma ponta porosa (vela de filtro ou tubo perfurado, revestido com manta ou geossintético permeável), que é instalado no terreno através de uma perfuração, ao redor da qual executa-se um bulbo de areia. Este dispositivo permite que a água flua para o interior do tubo. A ponta porosa se comunica com a superfície por um tubo plástico, através do qual o nível d’água é medido. A diferença de cota entre o nível d’água medido e a ponta porosa corresponde à pressão neutra, em metros de coluna d’água. Figura 7.6 - Piezômetro de Casagrande (Lambe & Whitman, 1969)
  • 7.
    Notas de Aula- Mecânica dos Solos 99 Exemplo 2: O perfil geotécnico abaixo apresenta um terreno onde os piezômetros de Casagrande instalados indicam artesianismo do lençol inferior. Calcular as tensões totais e efetivas iniciais e a pressão neutra nos pontos assinalados. 20 71 106106 142 50 115 0 21 31 27 95 75 11 0 20 40 60 80 100 120 140 160 TENSÕES - (kN/m2) PROFUNDIDADE-(m) Tensão total Pressão neutra Tensão efetiva Profundidade Tensão total (kN/m2 ) Pressão neutra (kN/m2 ) Tensão efetiva (kN/m2 ) Pontos (m) σv0 = γw . z1 + γsat . z u0 = γw . zw σ‘v0 = σv0 – u0 A 2,0 10 . 2 = 20 10 . 2 = 20 20 - 20 = 0 B 5,0 20 + 17 . 3 = 71 10 . 5 = 50 71 - 50 = 21 10 . (5,5 + 2) = 75 (Argila) 106 - 75 = 31 C 7,5 71 + 14 . 2,5 = 106 10 . (5,5 + 4) = 95 (Areia) 106 – 95 = 11 D 9,5 106 + 18 . 2 = 142 10 . (7,5 + 4) = 115 142 - 115 = 27 7.1.7 Tensões horizontais Até agora foram vistas as tensões verticais iniciais, totais e efetivas, entretanto não é suficiente para se conhecer o estado de tensão inicial, pois considerando uma situação bidimensional, é necessário determinar as tensões que atuam em dois planos ortogonais. Devido ao peso próprio ocorrem também tensões horizontais, que são uma parcela da tensão vertical atuante: v h k ' ' σ σ = onde o coeficiente “k” é denominado de coeficiente de tensão lateral, que é função do tipo de solo, da história de tensões, etc. N.T. 0,0 m γ = 10,0 kN/m3 N.A. - 2,0 m - 5,0 m - 7,5 m A B C γ = 17,0 kN/m3 γ = 14,0 kN/m3 areia água argila - 11,5 m D γ = 18,0 kN/m3 areia 2,0 m - 9,5 m
  • 8.
    Notas de Aula- Mecânica dos Solos 100 Existe uma situação em que a tensão horizontal efetiva e a tensão vertical efetiva se relacionam de maneira simples: quando não há deformação lateral do depósito (por exemplo, extensos depósitos sedimentares). Neste caso define-se o coeficiente de tensão lateral no repouso (ko), que é a relação entre tensões efetivas iniciais: 0 0 0 ' ' v h k σ σ = O valor de “K0” pode ser obtido através de ensaios de laboratório em que simulam condições iniciais, ou seja, sem deformações laterais. In situ, pode-se determinar o valor de “K0” introduzindo no terreno uma célula-espada (Figura 7.7), ou seja, um medidor de pressão semelhante a uma almofada, porém de pequena espessura, que é cravado verticalmente no terreno, como uma espada, e após a estabilização permite deduzir a tensão lateral total (σh0). Conhecendo o valor da pressão neutra inicial (u0) e da tensão efetiva vertical (σ‘v0) obtém-se o valor de “K0” pela equação anterior. Valores típicos de “K0”, em função do tipo de solo: - areia fofa 0,55 - areia densa 0,40 - argila de baixa plasticidade 0,50 - argila de alta plasticidade 0,65 Há algumas relações empíricas para a determinação de “K0”, como as apresentadas na Tabela abaixo: Tabela 7.1 – Relações empíricas para determinação de “K0” Relações Tipo de solo Autor / Ano K0 = 1 - sen φ solos granulares Jaky, 1944 K0 = 0,95 - sen φ argilas normalmente adensadas Brooker e Ireland, 1965 K0 = (1 - sen φ) . OCR argilas pré-adensadas Meyerhof, 1976 K0 = (1 - sen φ) . OCRsenφ argilas pré-adensadas Mayne e Kulhawy, 1981 Onde: φ = ângulo de atrito interno do solo (Unidade 9) OCR = razão de pré-adensamento (Unidade 8) 0V Vm OCR σ σ ′ ′ = , (σ‘vm = tensão de pré-adensamento e σ‘v0 = tensão efetiva atual) Figura 7.7 - Célula espada para a determinação da tensão horizontal total.
  • 9.
    Notas de Aula- Mecânica dos Solos 101 Exemplo 3: Calcular tensão efetiva vertical inicial e a tensão efetiva horizontal inicial nos pontos A, B, C e D no perfil geotécnico da figura abaixo e traçar o diagrama de variação das tensões com a profundidade. 34,034,0 61,061,0 81,081,0 131,078,6 64,8 48,8 48,6 30,5 17,0 0 20 40 60 80 100 120 140 160 TENSÕES - (kPa) PROFUNDIDADE-(m) Tensão efetiva vertical Tensão efetiva horizontal Tensão efetiva vertical (kPa) Tensão efetiva horizontal (kPa) Pontos σ‘vo = γsub . z = (γsat - γw) . z σ’h0 = k0 . σ’v0 A 17 . 2 = 34,0 34 . 0,5 = 17,0 61 . 0,5 = 30,5 B 34 + (19 - 10) . 3 = 61,0 61 . 0,8 = 48,8 81 . 0,8 = 64,8 C 61 + (15 - 10) . 4 = 81,0 81 . 0,6 = 48,6 D 81 + (20 - 10) . 5 = 131,0 131 . 0,6 = 78,6 7.1.8 Superfície de terreno inclinado Superfícies inclinadas geram tensões tangenciais (τ) nas faces horizontal e vertical de um elemento de solo (Figura 7.8). Figura 7.8 – Superfície do terreno inclinado N.T. A 0 m γ = 17 e K0 = 0,5 N.A. - 2 m - 5 m - 14 m B C D argila areia areia - 9 m γ = 19 e K0 = 0,5 γ = 15 e K0 = 0,8 γ = 20 e K0 = 0,6 N.T. γ W b0 B z N T i i γ = peso específico natural i = inclinação do terreno
  • 10.
    Notas de Aula- Mecânica dos Solos 102 Onde: W = peso do solo W = γ . B . z N = W . cos i (tensão normal) B = b0 . cos i W = γ . bo . cos i . z T = W . sen i (tensão tangencial) Tensão total vertical inicial (plano paralelo a superfície) σv0 = W / A = W / (b0 . 1 m) = γ . b0 . cos i . z / (b0 . 1 m) σv0 = γ . z . cos i Tensão total normal σn0 = N / A = W. cos i / (b0 . 1 m) = γ . b0 . cos i . z . cos i / (b0 . 1 m) σn0 = γ . z . cos2 i Tensão cisalhante τ = T/A = W. sen i / (b0 . 1 m) = γ . b0 . cos i . z . sen i / (b0 . 1 m) τ = γ . z . sen i . cos i 7.1.9 Capilaridade É um processo de movimentação d’água contrária à ação gravitacional (ascensão capilar). A água se eleva por entre os interstícios de pequenas dimensões deixados pelas partículas sólidas (vazios ou poros), acima do nível d’água. O nível d’água ou freático é a superfície em que atua a pressão atmosférica e, na Mecânica dos Solos, é tomada como origem do referencial, para as poro- pressões, e no nível freático a poro-pressão é igual a zero. Os fenômenos de capilaridade estão associados diretamente à tensão superficial, sendo a que atua em toda a superfície de um líquido, como decorrência da ação da energia superficial livre. O perfil geotécnico da Figura 7.9, mostra-nos a distribuição típica da umidade do solo e da poro-pressão (u0). Figura 7.9 - Distribuição do teor de umidade e poro-pressão em um perfil de solo. N.T. zw N.A. água de contato saturação capilar parcial saturação capilar S = 100% N capilar N de saturação S < 100% altura de ascenção capilar u0 = γw . zw - u0 ( - ) ( + ) Poro-Pressão γSAT γSUB franja capilar S = 100%
  • 11.
    Notas de Aula- Mecânica dos Solos 103 Na Figura 7.9, tem-se o diagrama de poro-pressões, verifica-se que graças à ascensão capilar a poro-pressão acima do nível d’água é negativa (u < 0). O solo apresenta às vezes seus poros interligados e formando canalículos, que funcionam como tubos capilares. Assim pode-se explicar, dentro da massa, a ocorrência de zonas saturadas de solos, que estão situadas acima do nível d’água. Para melhor compreensão do fenômeno da capilaridade é possível partir da idéia de que poros, entre os grãos dos solos, formam canalículos capilares verticais. Um modelo físico disso é emergir a ponta de um tubo capilar em água (Figura 7.10). A água subirá até uma “altura de ascensão capilar”, tanto maior esta altura quanto menor o diâmetro do tubo, tal que a componente vertical da força capilar (Fc = 2.π.r.Ts) seja igual ao peso da coluna d’água suspensa. Figura 7.10 - Modelo físico do fenômeno da capilaridade. Onde: Ts = tensão superficial da água (0,0764 g/cm) α = ângulo de contato que dependem do fluído e do sólido de contato. Portanto, para que ocorra o equilíbrio, temos que: 2π r Ts cos α = π r2 γw hc cos2 hc wr Ts γ α ⋅ ⋅ = ou cos4 hc wd Ts γ α ⋅ ⋅ = verifica-se que a altura de ascensão capilar é inversamente proporcional ao diâmetro. Nos solos como estimativa da ascensão capilar máxima (α = 0°) 306,0 hc d = , com “d” em cm. Onde “d” é o diâmetro dos poros. Portanto nos solos arenosos e pedregulhosos onde os poros são maiores, a altura de ascensão capilar na prática está entre 30cm e 1m. Já nos solos siltosos e argilosos, onde os poros são menores, a altura de ascensão capilar chega a dezenas de metros. A água em contato com o solo também tenderá a formar meniscos. Nos pontos de contato dos meniscos com os grãos (Figura 7.11) evidentemente agirão pressões de contato, tendendo a comprimir os grãos. Estas pressões de contato (pressões neutras negativas) somam-se as tensões totais: σ‘ = σ - (-u) = σ + u α TUBO CAPILAR φ = dMENISCO Patm h0 N.A. Ts . cos α TsTs u = γw . hc P0
  • 12.
    Notas de Aula- Mecânica dos Solos 104 fazendo com que a tensão efetiva realmente atuante seja maior que a total. Esse acréscimo de tensão proporciona um acréscimo de resistência conhecido como coesão aparente (ver Unidade 9), responsável, por exemplo, pela estabilidade de taludes em areia úmida. Uma vez eliminada a ação das forças capilares (saturação do solo) desaparece este ganho de resistência (coesão aparente tende a zero). Figura 7.11 - Pressões de contato em uma amostra de solo. Exemplo 4: Dado o perfil geotécnico abaixo, admitindo que na zona da franja capilar o solo esteja completamente saturado, qual o valor da pressão neutra e efetiva nos pontos A e B. 20 -5 71 41 -15 -5 5 15 25 35 45 55 65 75 TENSÕES - (kPa) PROFUNDIDADE-(m) Pressão neutra Tensão efetiva Tensão total (kN/m2 ) Pressão neutra (kN/m2 ) Tensão efetiva (kN/m2 ) Pontos σv0 = γ . z1 + γsat . z u0 = γw . zw σ’v0 = σ’v0 - u0 A 18 . 2 = 36 10 . (- 0,5) = - 5 36 - (-5) = 41 B 36 + 22 . 2,5 = 91 10 . 2 = 20 91 - 20 = 71 7.2 Propagação de tensões no solo devido a carregamentos externos São as tensões decorrentes das cargas estruturais aplicadas (tensões induzidas), resultantes de fundações, aterros, pavimentos, escavações, etc. A lei de variação das modificações de tensões, em função da posição dos elementos do terreno, chama-se distribuição de pressões. Existem várias teorias sobre a distribuição de pressões, mas vamos estudar a teoria simples ou antiga e a teoria da elasticidade. MENISCOS GRÃOS DE SOLO N.T. N.A. areia fina franja capilar A - 2,0 m - 2,5 m - 4,5 m γ = 18 kN/m2 γ = 22 kN/m2 A B
  • 13.
    Notas de Aula- Mecânica dos Solos 105 A distribuição de tensões comporta duas análises: 1ª) as tensões induzidas no interior do maciço; 2ª) as tensões de contato. 7.2.1 Tensões induzidas no interior do maciço São usualmente calculadas pela teoria da elasticidade. 7.2.2 Efeito de sobrecarga Quando se aplica uma sobrecarga ao terreno (no caso da Figura 7.12, a sobrecarga vertical Q foi aplicada à superfície), o elemento A (x, z) tem seu estado de tensões original modificado, ou seja: Figura 7.12 - Efeito de uma sobrecarga em um perfil de solo. a) tensão vertical - inicial (efeito do peso próprio) ...........................................σv0 - final (após aplicação da sobrecarga) ..................................σv0 + ∆σv b) tensão horizontal - inicial ..................................................................................σh0 - final ....................................................................................σh0 + ∆σh c) tensão cisalhante - inicial ..................................................................................zero - final ....................................................................................τ x Q ∆σh+σh0 σh0+∆σh ∆σv + σv0 τ τ ∆σv + σv0 z N.T. ∆σv0 = σz ∆σh0 = σx
  • 14.
    Notas de Aula- Mecânica dos Solos 106 7.2.3 Teoria de distribuição de pressões no solo por efeito de sobrecarga Quando se aplica uma sobrecarga ao terreno, ela produz modificações nas tensões até então existentes. Teoricamente, tais modificações (acarretando aumento ou diminuição das tensões existentes) ocorrem em todos os pontos do maciço solicitado. Dependendo da posição do ponto (elemento do terreno) em relação ao ponto ou lugar de aplicação da sobrecarga, as modificações serão de acréscimo ou decréscimo, maiores ou menores. 7.2.4 Hipótese simples ou antiga A distribuição de pressões ou tensões pela hipótese simples ou antiga admite-se que a carga “Q” aplicada à superfície se distribui, em profundidade segundo um ângulo (ϕ0), chamado ângulo de espraiamento ou de propagação. A Figura 7.13 apresenta a distribuição de tensões no interior do maciço segundo a hipótese simples. A propagação das pressões restringe-se à zona delimitada pelas linhas de espraiamento MN. Figura 7.13 - Distribuição de pressões pela hipótese simples. Kogler e Scheidig (1948) sugerem valores para o ângulo de espraiamento segundo a tabela abaixo: Tipo de solo ϕ 0 Solos muito moles < 40° Areias puras (coesão nula) 40° a 45° Argilas de coesão elevada (rijas e duras) 70° Rochas > 70° Para fins práticos, a propagação de pressões, devido à sobrecarga, restringe à zona delimitada pelas linhas de espraiamento. A hipótese simples contraria todas as observações experimentais (feitas através de medições no interior do subsolo), pelas quais se verificou que a pressão distribuída em profundidade não é uniforme, mas sim variável, em forma de sino. A propagação das pressões restringe-se à zona delimitada pelas linhas de espraiamento MN.
  • 15.
    Notas de Aula- Mecânica dos Solos 107 A faixa de validade para esta teoria restringe-se a: a) sobrecargas provenientes de fundações muito rígidas e/ou estruturas rígidas (chaminés, torres, obeliscos, blocos de máquinas) com tendência de recalques uniformes, as pressões tendem à uniformidade; b) profundidades muito grandes - achatamento do diagrama de pressões; c) valor de ϕ0 a adotar - quanto mais resistente for o solo, tanto maior será o valor de ϕ0. 7.2.5 Teoria da elasticidade A teoria matemática da elasticidade fundamenta-se nos estudos, entre outros, de Cauchy, Navier, Lamé e Poisson, tendo suas equações fundamentais sido estabelecidas na década de 1820. O estudo sobre a possível distribuição das tensões no solo, resultado da aplicação da teoria de Boussinesq, baseia-se na teoria da elasticidade. A teoria de elasticidade linear é baseada no comportamento elástico dos materiais, ou seja, na proporcionalidade entre as tensões (σ) e deformações (ε), segundo a lei de Hooke. A razão σ / ε = E denomina-se módulo de elasticidade ou módulo de Young. A correspondente expansão lateral do material terá valor ε = - µ . σ / E, onde “µ” é o coeficiente de Poisson (para solos e rochas varia entre 0,2 e 0,4). Em resumo a teoria da elasticidade admite: a) material seja homogêneo (propriedades constantes na massa do solo); b) material seja isotrópico (em qualquer ponto as propriedades são as mesmas independente da direção considerada); c) material seja linear-elástico (tensão e deformação são proporcionais) Existem soluções para uma grande variedade de carregamentos. 7.2.5.1 Carga concentrada - Solução de Boussinesq O estudo do efeito de cargas sobre o terreno foi estudado inicialmente por Boussinesq (1885), através da teoria da elasticidade. Estudou o efeito da aplicação de uma carga concentrada sobre à superfície de um semi-espaço infinito. (Figura 7.14) Expressões: 3 5 2 3 ' z R P v ⋅ ⋅⋅ ⋅ =∆ π σ ( ) ( )⎥ ⎦ ⎤ ⎢ ⎣ ⎡ +⋅ − − ⋅⋅ =∆ zRRR zrP h µ π σ 213 2 ' 5 2 2 5 2 3 zr R P ⋅⋅ ⋅⋅ ⋅ =∆ π τ onde: zr 22 +=R µ = coeficiente de Poisson Figura 7.14 - Carga concentrada. x = r P = Q ∆σ’h ∆σ’v τ Rz N.T. z x ∆σ’v = σz ∆σ’h = σx A
  • 16.
    Notas de Aula- Mecânica dos Solos 108 Exemplo 5: Foi aplicado no perfil abaixo uma sobrecarga de 1500 kN na superfície do terreno. Determine as tensões iniciais, os acréscimos de tensões devido à sobrecarga e as tensões finais no ponto A. Tensões iniciais: σ‘v0 = γ . z = 19 . 3 = 57,0 kPa σ‘h0 = k0 . σ‘v0 = 0,5 . 57 = 28,5 kPa τ0 = 0 Acréscimo de tensão devido à sobrecarga 3 5 3 24,42 15003 ' ⋅ ⋅⋅ ⋅ =∆ π σ v = 14,1 kPa ( ) ( )⎥ ⎦ ⎤ ⎢ ⎣ ⎡ + − − ⋅⋅ =∆ 324,4.24,4 5,0.21 24,4 333 2 1500 ' 5 2 π σ h = 14,1 kPa 2 5 33 24,42 15003 ⋅⋅ ⋅⋅ ⋅ =∆ π τ = 14,1 kPa Tensões finais σ‘vf = σ‘v0 + ∆σ‘v = 57 + 14,1 = 71,1 kPa σ‘hf = σ‘h0 + ∆σ‘h = 28,5 + 14,1 = 42,6 kPa τf = τ0 + ∆τ = 0 + 14,1 = 14,1 kPa É importante observar que os solos, de modo geral, afastam-se das condições ideais de validade da teoria de Boussinesq. Não são materiais elásticos, nem homogêneos, nem isotrópicos. Entretanto, as diferenças entre os solos reais e o material ideal de Boussinesq não são de molde a impedir a aplicação da teoria da elasticidade aos solos, desde que observados certos requisitos. Requisitos para aplicabilidade da solução de Boussinesq (BARATA, 1993): a) Deve-se haver compatibilidade nas deformações do solo. Portanto, as cargas aplicadas e distribuídas não se aproximem da máxima resistência ao cisalhamento do solo. Fator de segurança, no mínimo igual a 3, para haver proporcionalidade entre as tensões e deformações; b) A resistência do solo deve ser constante, ao longo da profundidade (E = módulo de elasticidade). Nas argilas (solos coesivos) esse aspecto é mais viável. Nas areias (solos incoerentes), menos viável; c) Solos muito heterogêneos (com presença de camadas de origem, constituição e resistência muito diferentes) em contatos afastam-se muito do material de Boussinesq. Usar a solução de Westergaard, item 7.2.6; d) Somente cargas na superfície. Cargas abaixo da superfície - teoria de Mindlin; r = 3 m P = 1500 kN R N.T. z γ = 19 kN/m3 µ = 0,5 K0 = 0,5 R = 4,24 m 3 m A
  • 17.
    Notas de Aula- Mecânica dos Solos 109 e) Teoria admite que o material solicitado tenha resistência à tração e ao cisalhamento (ϕo = 90o ) Nos solos argilosos o erro é menor; f) A solução de Boussinesq é para carga concentrada, que na prática não ocorre nas fundações reais. A teoria só se aplica sem erros grosseiros, quando: - Carga sobre área circular, z > 3 d (d = diâmetro); - Carga sobre área retangular, z > 2,5 lado menor; 7.2.5.2 Carga linear - Solução de Melan A partir das expressões de Boussinesq para carga concentrada, usando o princípio da superposição (o efeito do conjunto considerado como a soma dos efeitos de cada um dos componentes) e por meio de integração matemática, foi possível que vários pesquisadores chegassem a expressões para o cálculo da distribuição causada por cargas lineares e áreas carregadas. As seguintes expressões foram propostas por Melan (Figura 7.15) ( )222 3 2 ' xz zq v + ⋅⋅ =∆σ ( )222 2 2 ' xz zxq h + ⋅⋅⋅ =∆σ ( )222 2 2 xz xzq xy + ⋅⋅⋅ =τ Figura 7.15 - Solução de Melan. 7.2.5.3 Área carregada - Carga uniforme sobre uma placa retangular de comprimento infinito Em placas retangulares em que uma das dimensões é muito maior que a outra, os esforços induzidos na massa de solo podem ser determinados através das expressões propostas por Carothers e Terzaghi, conforme o esquema da Figura 7.16. ∆σ‘v = P (α + sen α . cos (α + 2δ))/π ∆σ‘h = P (α - sen α . cos (α + 2δ))/π ∆τ = P (sen α . sen (α + 2δ))/π P = carga distribuída por unidade de área Figura 7.16 - Solução de Carothers q z ∆σ‘v A x ∆σ‘h τ • δ α P = ∆qs x z A (x, z) B = 2b ∆σ‘h ∆σ‘v
  • 18.
    Notas de Aula- Mecânica dos Solos 110 O bulbo de pressões correspondentes a esse tipo de carregamento é apresentado na Figura 7.17, onde: b = semi-largura z = profundidade vertical x = distância horizontal do centro ∆qs = P = carregamento ∆σ1 = ∆σ‘v = tensão vertical efetiva ∆σ3 = ∆σ‘h = tensão horizontal efetiva Para determinar as tensões induzidas obtém-se do ábaco o fator de influência (I). Valor este que multiplicado pelo carregamento na superfície, nos dará o acréscimo de tensão no ponto desejado, conforme as expressões: ∆σ‘v = P . I1 e ∆σ‘h = P . I3 Figura 7.17 - Carregamento uniformemente distribuído sob uma área retangular de comprimento infinito.
  • 19.
    Notas de Aula- Mecânica dos Solos 111 Exemplo 6: Determine os acréscimos de tensão vertical e horizontal nos pontos assinalados da figura abaixo Pontos x/b z/b I1 ∆σ‘v I3 ∆σ‘h A 0 1 0,82 164 0,18 36 B 1 1 0,64 128 0,08 16 C 2 1 0,28 56 D 0 2 0,55 110 E 1 2 0,47 94 F 2 2 0,33 66 G 0 3 0,39 78 H 1 3 0,37 74 I 2 3 0,28 56 7.2.5.4 Área carregada - Carregamento uniformemente distribuído sobre uma placa retangular Para o caso de uma área retangular de lados a e b uniformemente carregada, as tensões em um ponto situado a uma profundidade z, na mesma vertical do vértice. Na Figura 7.18 são dados, segundo Holl (1940), as expressões para a determinação das tensões induzidas. ( )⎥ ⎦ ⎤ ⎢ ⎣ ⎡ +⋅ ⋅⋅ + ⋅ ⋅ =∆ −− 2 2 2 1 332 ' RR R zba Rz ba arctg P v π σ ⎥ ⎥ ⎦ ⎤ ⎢ ⎢ ⎣ ⎡ ⋅ ⋅⋅ + ⋅ ⋅ =∆ 3 2 232 ' RR zba Rz ba arctg P h π σ ⎥ ⎥ ⎦ ⎤ ⎢ ⎢ ⎣ ⎡ ⋅ ⋅ −=∆ 3 2 2 2 12 RR az R aP π τ Figura 7.18 - Placa retangular. Pode-se utilizar o ábaco da Figura 7.19, a fim de determinar o acréscimo de tensão vertical (∆σ‘v = σz) no vértice de uma placa retangular carregada uniformemente. Onde: m = b/z n = a/z temos, σz = ∆σ‘v = P . I ∆qs = P = 200kPa x A B C D E F G H I 1 m 1 m 1 m 1 m 1 m 1 m P z ∆σ‘v = σz A x ∆σ‘h = σx b a 222 3 22 2 22 1 zbaR zbR zaR ++= += +=
  • 20.
    Notas de Aula- Mecânica dos Solos 112 m = 0,1 m = 0,2 m = 0,3 m = 0,4 m = 0,5 m = 0,6 m = 0,7 m = 0,8 m = 0,9 m = 1,0 m = 1,2 m = 1,4 m = 1,6 m = 1,8 m = 2,0 m = 2,5m = 3,0 0,00 0,01 0,02 0,03 0,04 0,05 0,06 0,07 0,08 0,09 0,10 0,11 0,12 0,13 0,14 0,15 0,16 0,17 0,18 0,19 0,20 0,21 0,22 0,23 0,24 0,25 0,1 1,0 10,0 n Coeficientedeinfluência-I P σ‘v = σz b a z A σ‘h = x m=b/z n = a/z σz = P.I Figura 7.19 - Carregamento uniformemente distribuído sob uma área retangular.
  • 21.
    Notas de Aula- Mecânica dos Solos 113 Exemplo 7: Calcular o acréscimo de carga, na vertical do ponto A, a profundidade de 5,0 m. A placa superficial tem 4,0 m x 10,0 m, e esta submetida a uma pressão uniforme de 340 kPa. a = 10m z = 5 m b = 4m ábaco: m = 4/5 = 0,8 I = 0,181 n = 10/5 = 2 ∆σ‘v = P x I = 340 x 0,181 = 61,5 kPa Utilizando a expressão para o acréscimo de tensão vertical, temos: R1 = (102 +52 )0,5 = 11,18 R2 = (42 + 52 )0,5 = 6,40 R3 = (102 + 42 +52 )0,5 = 11,87 ⎥ ⎦ ⎤ ⎢ ⎣ ⎡ +⋅ ⋅⋅ + ⋅ ⋅ =∆ −− )4,618,11( 87,11 5410 87,115 410 2 340 ' 22 arctgv π σ = [ ]546,0674,0 2 340 +arctg π [ ]radradv 546,0593,0 2 340 ' +=∆ π σ = kPav 5,61340181,0' =×=∆σ 7.2.5.5 Área carregada - Carregamento uniformemente distribuído sobre uma área circular (tanques e depósitos cilíndricos, fundações de chaminés e torres) As tensões induzidas por uma placa uniformemente carregada, na vertical que passa pelo centro da placa, podem ser calculadas por meio da integração da equação de Boussinesq, para toda área circular. Esta integração foi realizada por Love, e na Figura 7.19 têm-se as características geométricas da área carregada. O acréscimo de tensão efetiva vertical induzida no ponto A, situado a uma profundidade z é dada pela expressão: ( ) ⎥ ⎥ ⎥ ⎦ ⎤ ⎢ ⎢ ⎢ ⎣ ⎡ ⎥ ⎥ ⎥ ⎦ ⎤ ⎢ ⎢ ⎢ ⎣ ⎡ + −⋅==∆ 2/3 2 1 1 1' z R Pzv σσ Onde: R = raio da área carregada z = distância vertical x = distância horizontal a partir do centro da área carregada P = ∆qs = carregamento Figura 7.20 - Área circular. z ∆σ‘v = σz A x ∆σ‘h = σx 10 m 4 m 340 KPa P =∆qs x z ∆σ’v R z A
  • 22.
    Notas de Aula- Mecânica dos Solos 114 Para pontos situados fora da vertical que passa pelo centro da placa, o acréscimo de tensão efetiva vertical poderá ser calculado pelo ábaco da Figura 7.21, que fornece isóbaras de ∆σ‘v/P, em função do afastamento e da profundidade relativa x/R e z/R, respectivamente. Figura 7.21 - Carregamento uniformemente distribuído sob uma área circular.
  • 23.
    Notas de Aula- Mecânica dos Solos 115 Exemplo 8: Calcular o acréscimo de tensão vertical nos pontos A e B transmitido ao terreno por um tanque circular de 6,0 m de diâmetro, cuja pressão transmitido ao nível do terreno é igual a 240 kPa. Utilizando o ábaco, temos: Ponto X/R Z/R I ∆σ‘v (kPa) A 0 1 0,64 153,5 B 1 1 0,33 79,2 A tensão final no ponto A será: σ‘vfA = 16,5 . 3 + 153,5 = 203,0 kPa 7.2.5.6 Área carregada - Carregamento Triangular Possui grande aplicação na estimativa de tensões induzidas no interior de massa de solo por aterros, barragens, etc. Existem soluções para diversos tipos de carregamento (triângulos retângulos, escaleno, trapézios, etc.). Gráfico de Osterberg - determina a tensão vertical (∆σ‘v) devido a uma carga em forma de trapézio de comprimento infinito (Figura 7.22). 1' Iv ⋅∆=∆ σσ a / z I1 → Coeficiente de Influência b / z Gráfico de Carothers - determina a tensão vertical e horizontal (∆σ1 = ∆σ‘v, ∆σ3 = ∆σ‘h) devido a uma carga em forma de triângulo isósceles de comprimento infinito. (Figura 7.23). x / a v'1 σσ ∆=∆ z / a h'3 σσ ∆=∆ P =∆qs x z ∆σ’v b z a P =∆qs x z ∆σ’v a z a P = 240 x z ∆σ’vfA R = 3 m 3 m ∆σ’vfB A B γ = 16,5 kPa
  • 24.
    Notas de Aula- Mecânica dos Solos 116 Gráfico de Fadum - determina a tensão vertical (∆σ‘v) sob um carregamento trinagular de comprimento finito. (Figura 7.24) m = b1 / z Iz → Coeficiente de Influência n = a1 / z Figura 7.22 - Carregamento trapezoidal de comprimento infinito - Gráfico de Osterberg. x ∆σ’v a1z ∆σ b1
  • 25.
    Notas de Aula- Mecânica dos Solos 117 Figura 7.23 - Carregamento triangular de comprimento infinito - Gráfico de Carothers. Figura 7.24 - Carregamento triangular de comprimento finito - Gráfico de Fadun
  • 26.
    Notas de Aula- Mecânica dos Solos 118 7.2.5.7 Área carregada - Carregamento uniformemente distribuído sobre uma superfície de forma irregular. (gráfico circular de Newmark) O gráfico circular de Newmark é baseado na equação de Love ( ) ⎥ ⎥ ⎥ ⎦ ⎤ ⎢ ⎢ ⎢ ⎣ ⎡ ⎥ ⎥ ⎥ ⎦ ⎤ ⎢ ⎢ ⎢ ⎣ ⎡ + −⋅==∆ 2/3 2 1 1 1' z R Pzv σσ ⇒ IPz ⋅=σ ⇒ P z I σ = A Figura 7.25 apresenta a construção gráfica de Newmark que atribui valores para I e calcula- se o raio da placa necessário para produzir o acréscimo de pressões à profundidade z. I = σz/P R/z 0,0 0,000 0,1 0,270 0,2 0,400 0,3 0,518 0,4 0,637 0,5 0,766 0,6 0,918 0,7 1,110 0,8 1,387 0,9 1,908 1,0 ∞ Figura 7.25 - Ábaco circular de Newmark. - Dividindo cada círculo em 20 partes iguais, têm-se: σz = 0,1 P z = 0,1 . P / 20 = 0,005 P - Desenha-se a planta da superfície carregada na escala do gráfico (AB = z) - O ponto onde se quer determinar o acréscimo de pressão deve coincidir com o centro do gráfico. O acréscimo de tensão vertical na profundidade z será: INPzv ⋅⋅==∆ σσ ' onde: P = carregamento externo N = número de fatores de influência (quadradinhos) I = unidade de influência R = 0,400 z R = 0,270 z INFLUÊNCIA = 0,005p
  • 27.
    Notas de Aula- Mecânica dos Solos 119 Exemplo 9: Com os dados da figura abaixo calcule, pelo gráfico de Newmark, a pressão vertical a 3 m de profundidade, abaixo do ponto M, para a placa (a) e a 2 m de profundidade para a placa (b). =∆ Av'σ 3 . 30 . 0,005 = 0,45 kg/cm2 = 45 kN/m2 =∆ Bv'σ 1 . 83 . 0,005 = 0,42 kg/cm2 = 42 kN/m2 7.2.6 Solução de Westergaard Alguns terrenos, devido a condições especiais de sua origem (por exemplo, o caso de certas argilas sedimentares), apresentam dispersas, em sua massa, intrusões ou lentes de material diverso, de granulometria mais grossa (siltes, areias, pedregulhos etc.) que acarretam aumento de resistência a deformações laterais. Soluções desse tipo tornam inaplicáveis as expressões de Boussinesq em seu aspecto original, pois esses terrenos se afastam ponderavelmente das hipóteses que servem de base ao desenvolvimento teórico. Westergaard (1938) resolveu este problema específico, aplicando a teoria da elasticidade, mas imaginando que o solo estudado se constituísse de numerosas N ≅ 30 p = 3 kg/cm3 300300 M (a) 150300 z = 3 m Escala 1:50 Valor da unidade de influência = 0,005 A B AB = z = 3m 300 300 200100 M p = 1 kg/cm3 (b) z = 2 m 200100 Escala 1:100 Valor da unidade de influência = 0,005 A B AB = z = 2m N ≅ 83
  • 28.
    Notas de Aula- Mecânica dos Solos 120 membranas horizontais, finas, muito juntas uma das outras e de grande resistência a deformações horizontais, sem inferir, todavia, na deformabilidade vertical do solo ensanduichado. Em outras palavras, supôs, em sua análise, um material anisótropo, mas homogêneo e com um coeficiente de Poisson muito baixo, chegando à seguinte expressão para a tensão vertical num ponto qualquer da massa de solo, devido à ação de uma carga pontual Q: ( ) 2/3 2 2 2 1 2 ' ⎥ ⎥ ⎥ ⎦ ⎤ ⎢ ⎢ ⎢ ⎣ ⎡ +⋅⋅ ⋅ ==∆ z xCz QC zv π σσ , onde µ µ 22 21 − − =C Para µ = 0 (solo indeformável no sentido horizontal), obtém-se: C = ½ e os valores de σz, de pontos diretamente sob a carga, são os maiores possíveis. Compara-se com a expressão de Boussinesq, temos: N z Q zv ⋅==∆ 2 ' σσ Esta expresão e a de Westergaard estão representadas na Figura 7.26. A expressão de Westergaard integrada e fazendo-se µ = 0, permite obter as tensões causadas no solo, abaixo de uma área carregada uniformemente. A Figura 7.27 apresenta o ábaco para o cálculo dessas tensões. Para condições do terreno semelhantes às supostas no desenvolvimento téorico de Westergaard, dar-se-á preferência à sua expressão. Note-se que para cargas pontuais, sendo x/z menor que 0,8 e para áreas uniformementes carregadas com (a/z) e (b/z) menores que a unidade, considerando µ = 0, as expressões de Westergaard dão resultados 2/3 das de Boussinesq. 0,0 0,1 0,2 0,3 0,4 0,5 0,0 0,5 1,0 1,5 2,0 2,5 3,0 R / z N N z Q Z ⋅= 2 σ 2 3 2 1 2 3 ⎥ ⎥ ⎦ ⎤ ⎢ ⎢ ⎣ ⎡ ⎟ ⎠ ⎞ ⎜ ⎝ ⎛ + ⋅= z R NB π 2 3 2 21 1 ⎥ ⎥ ⎦ ⎤ ⎢ ⎢ ⎣ ⎡ ⎟ ⎠ ⎞ ⎜ ⎝ ⎛ ⋅+ = z R NW π N B N W Figura 7.26 - Ábaco de Boussinesq (curva NB ) e Ábaco de Westergaard (curva NW ).
  • 29.
    Notas de Aula- Mecânica dos Solos 121 Figura 7.27 - Ábaco de Westergaard. 7.3 Bulbo de Pressões Um aspecto interessante da distribuição de tensões pode ser observado com a noção do chamado bulbo de pressões. A distribuição ao longo de planos horizontais em diversas profundidades tem a forma de sino. O lugar geométrico de pontos de igual pressão em qualquer profundidade é uma superfície de revolução, cuja seção vertical (pelo eixo da carga tem o aspecto mostrado na Figura 7.28). É possível traçar-se um número infinito de isóbaras desse tipo, cada qual correspondendo a uma pressão (∆σ‘v = σz = constante). A tensão, em qualquer ponto no interior da massa limitada pela isóbara é maior que σz; qualquer ponto fora da isóbara tem tensão menor que σz. Para efeitos práticos, considera-se que valores menores que (0,1 p0) não têm efeito na deformabilidade do solo de fundação. E, portanto, a isóbara (∆σ‘v = σz = 0,1 p0) como que limitaria a zona do solo sujeita às deformações. A figura formada por essa isóbara denomina-se bulbo de pressões. Figura 7.28 - Bulbo de pressões.
  • 30.
    Notas de Aula- Mecânica dos Solos 122 7.3.1 Aplicações práticas do conceito de bulbo de pressões (BARATA, 1993) Pelos resultados experimentais e pelas expressões de ∆σ‘v = σz para o caso de áreas carregadas, pode-se depreender que, quanto maiores às dimensões da fundação, maiores serão as tensões a uma dada profundidade, ou, em outras palavras, quanto maiores às dimensões da placa carregada, maior a massa de terra afetada pelo bulbo de pressões. Inicialmente, convém que se saiba que o bulbo de pressões atinge uma profundidade Zo = α . B, conforme esta representado na figura 7.29, sendo B a largura (menor dimensão) da área carregada e α um fator que depende da forma desta área. Valores de α são fornecidos na tabela na mesma figura, calculados pela teoria da elasticidade, para o caso de base à superfície do terreno (no caso de base abaixo da superfície, os valores de α serão menores que os da tabela, deles não diferindo substancialmente, todavia). Em solos arenosos os valores da tabela deverão ser acrescidos de aproximadamente 20%. Figura 7.29 - Aplicação do bulbo de pressões. Exemplo 10: Num terreno como visto na figura abaixo, típico dos existentes no centro da cidade do Rio de Janeiro, é interessante observar a diferença entre os efeitos de uma pequena construção (área quadrada, de 4,5 m x 4,5 m) e os de uma construção maior (área quadrada, de 10 m x 10 m). O bulbo de pressões da pequena construção fica restrito à camada de areia, ou seja, praticamente não provocaria recalques sensíveis; o bulbo da grande construção, por outro lado, influenciaria a camada de argila mole (pressão no topo seria 30% de Po), acarretando adensamento e recalques consequentes. Forma de área carregada α Circular ou quadrada (L/B=1) ~ 2,0 1,5 ~ 2,5 2 ~ 3,0 3 ~ 3,54 Retangular 4 ~ 4,0 L . B 5 ~ 4,25 10 ~ 5,25 20 ~ 5,50 Infinitamente longa ∞ ~ 6,50 Planta DouB D ou B L/2 S S L/2 L N.T. Seção SS P0 0,10 . P0 z0 = α . B B
  • 31.
    Notas de Aula- Mecânica dos Solos 123 7.4 Pressão de Contato São as pressões sob a fundação e sobre o solo. Portanto, são muito complexas a sua distribuição e interferem a natureza do solo (argiloso ou arenoso), a rigidez da fundação (expressa pelo produto E . I, do módulo de elasticidade pelo momento de inércia), a profundidade. Sob fundações flexíveis - Devido à flexibilidade das fundações, as pressões de contato são uniformes e idênticas às que são transmitidas pelas fundações (a fundação acomoda-se perfeitamente às deformações do solo). Se as pressões são uniformes, os recalques, ao contrário, não são uniformes. Verifica-se na Figura 7.30, que os solos coesivos (argilas) recalcam mais no centro da área carregada e menos nas bordas, o que se justifica, tendo-se em vista os valores dos recalques dados pelas expressões da teoria da elasticidade (onde as tensões são maiores no centro da área carregada). Os solos coesivos são os que mais se aproximam dos materiais ideais da teoria da elasticidade (homogêneo, isotrópico e elástico). Para os solos não coesivos (areias), o módulo de elasticidade aumenta com o confinamento e, portanto, cresce da zona das bordas para a zona central da área carregada; daí os recalques serem menores mo centro e maiores na bordas. Para fundações flexíveis é usual admitir que a distribuição de pressões se faça proporcionalmente às deformações. Figura 7.30 - Distribuição das pressões de contato sob fundações flexíveis. (a) solos coesivos; (b). solos não coesivos. Sob fundações rigídas - São indeformáveis em relação ao solo, impondo uma deformação contante ao solo sob a superfície de carga. As pressões de contato, nesta situação, não poderão ser uniformes. Ao comparar-se com o que ocorre sob fundações flexíveis, verifica-se que, para se obter um recalque uniforme, terá que haver uma redistribuição das pressões, como esta representado na Figura 7.31, com diminuição no centro e aumento nas bordas para solos coesivos e, ao contrário, aumento no centro e diminuição na periferia para solos não coesivos.. Figura 7.31 - Distribuição das pressões de contato sob fundações rigídas. (a) solos coesivos; (b). solos não coesivos.
  • 32.
    Notas de Aula- Mecânica dos Solos 124 7.5 Exercícios 1) Dado o perfil geotécnico abaixo, calcule: a) as tensões devidas ao peso próprio do solo (σv e σ’v) e as pressões neutras; b) adotando o valor de k0 igual a 0,5 para todas as camadas, determine as tensões horizontais efetivas e totais; c) faça um diagrama da variação das tensões calculadas nos itens a e b, com a profundidade. 2) Para o perfil geotécnico abaixo, determine: a) o acréscimo de tensão vertical para um depósito circular nas profundidades indicadas; b) a tensão efetiva final final aos 7,5m e aos 90,0 m de profundidade. 3) Calcular a tensão induzida por uma carga pontual de 1500 t a um ponto situado a 5 m de profundidade afastado 5,3 m da aplicação da carga. 4) Calcular a tensão induzida (pressão transmitida) por uma carga circular (raio de 5 m) com 100 kN/m2 a pontos situados a 5 m de profundidade, sob o centro da placa e afastado a 6m do centro da placa. N.T.A 0,0 m γ = 15,0 kN/m3 N.A. - 2,0 m - 3,0 m - 4,5 m B C D γ = 17,0 kN/m3 γ = 15,0 kN/m3 - 6,0 m E γ = 17,5 kN/m3 P = ∆qs = 25 ton/m2 ∅ = 45 m 7,5 m 15,0 m 22,5 m 30,0 m 45,0 m 60,0 m 75,0 m 90,0 m N.T. γ = 2 ton/m2
  • 33.
    Notas de Aula- Mecânica dos Solos 125 5) Calcular o acréscimo de tensão produzida pela placa da figura abaixo, carregada com 78 kN/m2 , a um ponto situado a 5 m de profundidade abaixo do ponto O, indicado na figura, sabendo-se que a1 = 3 m; a2 = 4 m; b1 = 1 m; b2 = 2 m; 6) Dada a situação da planta abaixo, calcule o acréscimo de tensão devido a sapata carregada com 480 kN/m2 a 5 m de profundidade no ponto A. 7) Dado o perfil geotécnico abaixo, traçar o diagrama das pressões totais, efetivas e neutras A 1 m 3 m 9 m 4 m y x a1 a2 b1 b2 z II I III IV N.T.A+ 5,0 m N.A. + 2,0 m - 2,0 m - 7,0 m B C D - 6,0 m E Argila mole γSAT = 17,4 kN/m3 Areia grossa γ SAT = 23,8 kN/m3 Argila dura γ SAT = 20,5 kN/m3 Rocha Areia fina γ = 19,4 kN/m3
  • 34.
    Notas de Aula- Mecânica dos Solos 126 8) Traçar o diagrama das pressões totais, efetivas e neutras relativo ao perfil geotécnico abaixo 9) Determinar, no perfil abaixo, a cota ou profundidade em que teremos σ’v = 7,77 t/m2 = 77,7 kN/m2 . 10) Calcular o acréscimo de pressão causado por uma placa crcular, com 5 m de diâmetro, carregada com 20 t/m2 , em pontos situados sob o seu eixo, a 2,5; 5,0 e 10,0 m de profundidade e traçar o respectivo diagrama. N.T.A+ 2,0 m N.A. - 1,0 m - 6,0 m B C D- 12,0 m Argila saturada γs = 25,0 kN/m3 e = 0,8 Areia média saturada γ s = 26,6 kN/m3 w = 11% Rocha Areia fina argilosa γd = 13,2 kN/m3 Sr = 100% γs = 26,4 kN/m3 N.T.A+ 0,0 m N.A.- 1,0 m - 3,0 m B C D- 10,0 m Areia fina γs = 26,0 kN/m3 e = 0,8 Argila preta γ s = 26,6 kN/m3 Sr = 100% e = 1,08 Rocha Argila cinza arenosa γd = 15,2 kN/m3 - 6,0 m C Areia grossa saturada γ SAT = 19,8 kN/m3
  • 35.
    Notas de Aula- Mecânica dos Solos 127 11) Dada a placa circular em forma de anel, abaixo representada, calcular o acréscimo de pressão nos pontos A, B, C e D indicados, situados a 2,5m de profundidade. 12) Determinar a variação de pressão à profundidade de 4,0 m provocada por uma placa circular com 8,0 m de diâmetro, carregada com 724 toneladas, conforme indica esquema abaixo e traçar o respectivo diagrama. 13) Calcular a pressão transmitida ao ponto A pelo atero dado no esquema abaixo. A B C D 2m 3m 4m EM PLANTA A B C D Prof. (m) - 2,5 EM PERFIL 2m 2m 4m 4m A B C D E Q = 724 t x 0 m - 4 m • δα hat z A γ = 22 kN/m3 - 9 m 0 m + 3 m α = 28,5º β = 56,0º δ = 42,0º β
  • 36.
    Notas de Aula- Mecânica dos Solos 128 14) Dada a situação em planta de um ponto A, calcular a influência da sapata carregada com 480 kN/m2 a 5 metros de profundidade. 15) Calcular o acréscimo de pressão sob os pontos A, B, C e D, abaixo indicados, devido à construção do aterro dado e traçar o respectivo diagrama. 16) Três pilares afastados 6,0 m de eixo a eixo, transmitem as cargas indicadas no perfil abaixo. Considerando as ditas cargas como puntiformes, calcular as pressões transmitidas ao meio da camada de argila, sob cada pilar. A 9 m 4m 1m 3m 3m 12m 3m A B C D 0 m - 6 m γ = 22 kN/m3 3m 3m + 3 m 6m 6m - 1,5 m Areia grossa compacta 0 m P1 = 48 t P1 = 64 t P3 = 80 t - 3,5 m - 7,5 m Areia fina, medianamente compacta Argila cinza média
  • 37.
    Notas de Aula- Mecânica dos Solos 129 17) Calcular a pressão vertical nos pontos A, B e C, abaixo indicados devido a uma estaca carregada com 500 kN, sendo que 350 kN são transmitidos pela ponta da estaca e 150 kN pelo seu atrito lateral. A B C 15 m x 5m 5m c z C = 15 m z = 20 m x = 5 m