UNIVERSIDADE: _____________________
Curso: ________________________
Fundações Profundas:
“Estacas”
Aluno: _____________________________ RA: __________
Professor: Professor Douglas Constancio
Disciplina: Fundações I
____________________________________________________________________________________
FUNDAÇÕES - Professor Douglas Constancio – Engenheiro Lucas A. Constancio
0
Data: Americana, junho de 2004.
ESTACAS:
01 – CONSIDERAÇÕES GERAIS:
São consideradas como elementos estruturais e podem ser:
♦ Madeira
♦ Aço
♦ Concreto
Podem ser armadas ou não.
São dimensionadas para suportar cargas verticais, horizontais e inclinadas.
02 – DEVEM SER UTILIZADAS QUANDO:
(considerações de norma)
a - Transmitir as cargas de uma estrutura através de uma camada de solo de baixa
resistência ou através de água, até uma camada de solo resistente que garanta o apoio
adequado. A forma de trabalho das estacas assemelha-se aos pilares de uma estrutura.
b - Transmitir a carga a uma certa espessura de solo de resistência não muito elevada,
utilizando para isso o atrito lateral que se desenvolve entre o solo e a estaca.
c - Compactar solos granulares para aumentar a capacidade de carga desses solos.
d - Proporcionar escoramento lateral a certas estruturas ou resistir a forças laterais que se
exerçam sobre elas (como o caso de pontes), nesses casos é comum utilizar estacas
inclinadas.
e - Proporcionar ancoragem a qualquer efeito que tenha a tendência de “levantar” a
estrutura (estaca de tração).
f - Alcançar profundidades onde não tenha a ocorrência de erosão ou outro efeito nocivo
que comprometa a estabilidade da estrutura.
g - Proteger estruturas marítimas contra o impacto de navios ou outros objetos flutuantes.
03 – CLASSIFICAÇÃO DAS ESTACAS:
a - Quanto à forma de trabalho:
• Estaca de ponta: Capacidade de carga se dá com o apoio direto a uma camada
resistente.
• Estaca de atrito: Capacidade de carga se dá através do atrito lateral, produzido
contra o solo adjacente.
• Estaca mista: Utiliza os dois efeitos acima.
____________________________________________________________________________________
FUNDAÇÕES - Professor Douglas Constancio – Engenheiro Lucas A. Constancio
1
b - Forma de instalação no terreno:
• Cravação
• Escavação ou perfuração do terreno
• Reação ou prensagem
• Injeção d’água
04 – TIPOS DE ESTACAS:
Podem ser (quanto ao material): a – madeira
b – concreto
c – Aço
d – Mista: Madeira + concreto
Concreto + Aço
Categorias: a – Estacas pré-moldadas: Madeira
Aço
Concreto
b – Moldada in loco
c – Mistas (fundamentalmente pré-moldadas).
05 – CARACTERÍSTICAS DAS ESTACAS:
Neste capítulo estaremos abordando as características técnicas e executivas das estacas
usualmente empregadas em nosso mercado de trabalho, sendo que algumas serão
detalhadas num capítulo especial denominado de fundações especiais.
Estacas pré-moldadas:
Estacas de madeira:
• São utilizadas sempre abaixo do nível d’água do subsolo.
• Duração ilimitada abaixo do N.A., pois não sofrem o ataque de organismos aeróbios
e organismos inferiores, que delas se alimentam, causando seu apodrecimento.
• Permitem uma emenda fácil, como pode ser visto abaixo.
Esquema tradicional de emendas Esquema de proteção
____________________________________________________________________________________
FUNDAÇÕES - Professor Douglas Constancio – Engenheiro Lucas A. Constancio
2
Chapa de aço
Parafuso com rosca
e porca
Anel metálico
Ponteira
metálica
Madeiras mais utilizadas são:
• Eucalipto
• Aroeira
• Peroba do campo (rosa)
Diâmetros usuais:
• 25 cm
• 30 cm
• 35 cm
• 40 cm
O diâmetro da estaca de madeira é determinado pela fórmula empírica.
d = do + 0,02 x l
Onde: do = diâmetro (de tabela)
l = comprimento
Cargas de trabalho x diâmetro:
Ø (cm) C.T. (tf).
25 28
30 33
35 38 (*)
40 45 (*)
Desvantagens:
• Dificuldade de encontrar.
• Só para ser utilizada abaixo do N.A.
• Ataque por microorganismos quando utilizada acima do N.A.
• Limitações de carga.
• Alto custo.
Vantagens:
• Facilidade de emendas.
• Duração ilimitada quando utilizada abaixo do N.A.
• Oferece grande resistência a solicitação oriunda de levantamentos e transportes.
____________________________________________________________________________________
FUNDAÇÕES - Professor Douglas Constancio – Engenheiro Lucas A. Constancio
3
}
Diâmetros aparentes.
Comprimento disponível de 4 á 10 metros com
possibilidade de emendas.
(*) São consideradas
especiais.
Estacas Metálicas:
Estas estacas no Brasil possuem 03 categorias:
• Perfis (novos)
• Trilho de trem (usados)
• Tubos (novos ou usados)
Perfis: Podem ser utilizados isolados ou soldados como pode ser visto abaixo, formando a
área que precisamos.
Tubos: Podem ser preenchidos de concreto ou não e também podem ser cravados com a
ponta aberta ou fechada.
Trilhos:
São conhecidos como estacas “TR”. São trilhos de ferrovias que não servem mais como
rolamento, ou seja, perdera 10% de seu peso original, os quais possuem uma ótima
utilização como elemento de fundação profunda.
Podem ser utilizados isoladamente ou conjugados como podem ser vistos abaixo.
DESENHO pág. 6
TIPOS PRINCIPAIS DE TRILHOS DISPONÍVEIS NO MERCADO:
Dimensões Trilhos A B C D
TR - 37 122,2 122,2 62,7 13,5
DESENHO pág. 6 TR – 45 142,9 130,2 65,1 14,3
TR – 50 152,4 136,5 68,2 14,3
TR - 67 168,3 139,7 69,0 15,9
____________________________________________________________________________________
FUNDAÇÕES - Professor Douglas Constancio – Engenheiro Lucas A. Constancio
4
Solda
Solda
Perfil I Perfil I
Desvantagens:
• Falta de conhecimento técnico do produto
• Poucos fornecedores
Vantagens:
• Não fissuram – não trincam – não quebram.
• Fácil descarga e manuseio.
• Custo do frete mais barato em vista de seu peso.
• Pouca vibração de cravação.
• Facilidade de emendas.
• Podem ser utilizadas em galpões com altura de até 4,00 metros.
• Elevada resistência à flexão e compressão.
ESTACAS DE CONCRETO (UM CAPÍTULO A PARTE):
Tipos:
Estacas curtas: L 10 m≤
Estacas longas: L > 10 m
____________________________________________________________________________________
FUNDAÇÕES - Professor Douglas Constancio – Engenheiro Lucas A. Constancio
5
{
Pré – moldadas
e
Moldadas in Loco
L
Desprezamos a ponta.
____________________________________________________________________________________
FUNDAÇÕES - Professor Douglas Constancio – Engenheiro Lucas A. Constancio
6____________________________________________________________________________________
FUNDAÇÕES - Professor Douglas Constancio – Engenheiro Lucas A. Constancio
6
____________________________________________________________________________________
FUNDAÇÕES - Professor Douglas Constancio – Engenheiro Lucas A. Constancio
7____________________________________________________________________________________
FUNDAÇÕES - Professor Douglas Constancio – Engenheiro Lucas A. Constancio
7
1 – Estacas Pré-moldadas de Concreto:
São segmentos de concreto armado ou protendido com seção quadrada, ortogonal, circular
vazadas ou não, cravada no solo com o auxílio de bate estacas.
Detalhe típico de uma emenda.
Este tipo de emenda deve ser utilizado em estacas onde além dos esforços de compressão
atuam também os esforços de tração e flexão.
É feita a superposição dos elementos, já com as luvas ancoradas nos mesmos, aplicando-se
a solda em todo o contorno da emenda.
____________________________________________________________________________________
FUNDAÇÕES - Professor Douglas Constancio – Engenheiro Lucas A. Constancio
8
____________________________________________________________________________________
FUNDAÇÕES - Professor Douglas Constancio – Engenheiro Lucas A. Constancio
9____________________________________________________________________________________
FUNDAÇÕES - Professor Douglas Constancio – Engenheiro Lucas A. Constancio
9
Desvantagens:
• Dificuldades de transporte.
• Devem ser armadas para levantamento e transporte.
• Limitadas em seção e comprimento, devido ao peso próprio.
• Dificuldade de cravação em solos compactos, principalmente em areais compactas.
• Danos na cabeça quando encontra obstrução.
• Cortes e emendas de difícil execução.
• Exige determinação precisa de comprimento.
Vantagens:
• Duração ilimitada quando abaixo do N.A.
• Boa resistência aos esforços de flexão e cisalhamento.
• Boa qualidade do concreto (pois é confeccionada em fábricas apropriadas).
• Diâmetro e comprimento precisos.
• Controle do concreto feito em laboratório.
• Boa capacidade de carga.
2 – Estaca Mega:
São conhecidas também como estacas de reação, sua utilização é feita para reforçar
fundações e também em locais onde não podemos admitir vibrações.
____________________________________________________________________________________
FUNDAÇÕES - Professor Douglas Constancio – Engenheiro Lucas A. Constancio
10
0,50 m
São segmentos curtos, cravados um após o
outro, justaposto por meio de um macaco
hidráulico que reage contra um peso que
pode ser a própria estrutura a ser reforçada.
____________________________________________________________________________________
FUNDAÇÕES - Professor Douglas Constancio – Engenheiro Lucas A. Constancio
11
Vazio ∅ = 5cm
0,50m
0,20m
0,20m
Cabeça (elemento de concreto ou chapa metálica)
Macaco hidráulico
Estrutura a ser
reforçada
0,50m
Reação
Estaca Mega
3 – Estacas de Concreto Moldadas “In Loco”:
a - Estaca de Broca Manual:
São executadas com o auxílio de um trado manual do tipo espiral ou cavadeira, em solos
coesivos e sempre acima do N.A.
Diâmetros: 6” = 15 cm 5 Ton
8” = 25 cm 10 Ton
Comprimentos: 5.0 a 6.0 metros.
Desvantagens:
• Concreto feito a mão (baixa qualidade).
• Material de escavação mistura com o concreto.
• Só pode ser executada em solos coesivos.
• Só pode ser executada acima do N.A.
Vantagens:
• Elimina transporte de equipamento.
• Facilidade de execução.
• Baixo Custo.
____________________________________________________________________________________
FUNDAÇÕES - Professor Douglas Constancio – Engenheiro Lucas A. Constancio
12
Armadura
Concreto
Bulbo "utiliza
concreto apiloado".
Bulbo ou
cebola
b - Estaca tipo Strauss:
São estacas moldadas “in loco”, executadas com revestimento metálico recuperável, de
ponta aberta, para permitir a escavação do solo. Podem ser em concreto simples ou armado.
Como são estacas muito utilizadas no mercado da Construção Civil estamos colocando
abaixo as características das mesmas, sugeridas pela APEMOL (Associação Paulista de
Empresas Executoras de Estacas Moldadas no Local, do Sistema Strauss – 1979).
Desvantagens:
• Não pode ser executada abaixo do N.A.
• Concreto de baixa qualidade (feito à mão).
• Muita lama proveniente escavação.
• Execução lenta.
Vantagens:
• Simples Execução.
• Baixo Custo.
• Capacidade de carga e diâmetros diversos.
I – CARACTERÍSTICAS:
1.1 - Classificação
As estacas moldadas no local, tipo Strauss, são estacas executadas com
revestimento metálico recuperável, de ponta aberta, para permitir a escavação do solo.
Podem ser em concreto simples ou armado.
1.2 - Utilização
São usadas para resistir a esforços verticais de compressão, de tração ou ainda,
esforços horizontais conjugados ou não com esforços verticais.
1.3 - Disponibilidade
As estacas Strauss estão disponíveis no mercado com cargas e características
técnicas seguintes:
CAPACIDADE
DE CARGA (t)
DIÂMETRO
NOMINAL
(cm)
DIÂMETRO
INTERNO DA
TUBULAÇÃO
(cm)
DISTÂNCIA
MÍNIMA DO
EIXO DA
ESTACA A
DIVISA (cm)
20 25 20 15
30 32 25 20
40 38 30 25
60 45 38 30
90 55 48 35
NOTAS:
- Distância mínima entre eixos de estacas: 3 diâmetros nominais.
____________________________________________________________________________________
FUNDAÇÕES - Professor Douglas Constancio – Engenheiro Lucas A. Constancio
13
- Estacas sujeitas à tração estão sujeitas à armação (utilizar φnominal ≥ 32 cm).
1.4 - Vantagens
As estacas Strauss apresentam vantagem pela leveza e simplicidade do
equipamento que emprega. Com isso, pode ser utilizada em locais confinados, em
terrenos acidentados ou ainda no interior de construções existentes, com pé direito
reduzido. O processo não causa vibrações, o que é de muita importância em obras que
as edificações vizinhas, dada a natureza do subsolo e de suas próprias deficiências,
sofreriam danos sérios com essas vibrações.
Por ser moldada no local, fica acabada com comprimento certo, arrasada na cota
prevista, não havendo perda de material nem necessidade de suplementação.
II – EQUIPAMENTO:
Consta de um tripé de madeira ou de aço, um guincho acoplado a motor a explosão ou
elétrico, uma sonda de percussão munida de válvula em sua extremidade inferior para
retirada de terra, um soquete com aproximadamente 300 quilos, linhas de tubulação de aço,
com elementos de 2,00 a 3,00 metros de comprimento, rosqueáveis entre si, um guincho
manual para retirada da tubulação, além de roldanas, cabos e ferramentas. (fig.1)
Fig. 1 - Descrição do Equipamento.
III – PROCESSO EXECUTIVO:
3.1 - Centralização da estaca
O tripé é localizado de tal maneira que o soquete preso ao cabo de aço fique
centralizado no piquete de locação.
3.2 - Início da perfuração
Com o soquete é iniciada a perfuração até a profundidade de 1,00 a 2,00 metros,
furo esse que servirá de guia para a introdução do primeiro tubo, dentado na
extremidade inferior, chamado "coroa". (fig.2)
____________________________________________________________________________________
FUNDAÇÕES - Professor Douglas Constancio – Engenheiro Lucas A. Constancio
14
Fig. 2 - Início da Perfuração
3.3 - Perfuração
Com a introdução da coroa, o soquete é substituído pela sonda de percussão, a
qual, por golpes sucessivos vai retirando o solo do interior e abaixo da coroa, e a
mesma vai se introduzindo no terreno.
Quando estiver toda cravada, é rosqueado o tubo seguinte, e assim por diante,
até atingir uma camada de solo resistente e/ou que se tenha uma comprimento de
estaca considerado suficiente para garantia de carga de trabalho da mesma. A seguir,
com a sonda, procede-se à limpeza da lama e da água acumulada durante a perfuração.
(fig.3 e 4).
Fig. 3 - Colocação da Coroa. Fig. 4 - Estaca perfurada.
____________________________________________________________________________________
FUNDAÇÕES - Professor Douglas Constancio – Engenheiro Lucas A. Constancio
15
IV – CONCRETAGEM
4.1 - Nessa etapa, a sonda é substituída pelo soquete.
É lançado concreto no tubo em quantidade suficiente para se ter uma coluna de
aproximadamente 1 metro.
Sem puxar a tubulação apiloa-se o concreto formando uma espécie de bulbo. (fig.5)
Fig. 5 - Início da concretagem.
4.2 - Para execução do fuste, o concreto é lançado dentro da tubulação e, à medida que é
apiloado, esta vai sendo retirada com emprego de guincho manual. (fig.6, 7 e 8)
Para garantia da continuidade do fuste, deve ser mantida, dentro da tubulação durante o
apiloamento, uma coluna de concreto suficiente para que o mesmo ocupe todo o espaço
perfurado e eventuais vazios no subsolo.
Dessa forma o pilão não tem possibilidade de entrar em contato com o solo da parede da
estaca e provocar desbarrancamento e mistura de solo com o concreto.
Fig. 6 - Início do apiloamento. Fig. 7 Fig. 8
____________________________________________________________________________________
FUNDAÇÕES - Professor Douglas Constancio – Engenheiro Lucas A. Constancio
16
4.3 - A concretagem é feita até um pouco acima da cota de arrasamento da estaca,
deixando-se um excesso para o corte da cabeça da estaca.
4.4 - O concreto utilizado deve consumir, no mínimo 300 quilos de cimento por metro
cúbico e será de consistência plástica.
É importante frisar que a coluna de concreto plástico dentro das tubulações, por
seu próprio peso, já tende a preencher a escavação e contrabalançar a pressão do
lençol freático, se existente.
V – COLOCAÇÃO DOS FERROS
A operação final será a colocação dos ferros de espera para amarração aos blocos e
baldrames, sendo colocados 4 ferros isolados, com 2 metros de comprimento, que são
simplesmente enfiados no concreto. Os ferros servirão apenas para ligação das estacas
com o bloco ou baldrame, não constituindo uma armação propriamente dita.
Quando houver necessidade de colocação da armação para resistir a esforços outros que
não de compressão, devem-se tomar os seguintes cuidados:
a) A bitola mínima para execução de estacas armadas é 32cm;
b) Os estribos devem ser espaçados no mínimo 30 centímetros;
c) As armações serão sem emendas até 6 metros de comprimento, uma vez que os
tripés usuais têm 7 metros de comprimento;
d) Os estribos, sem ganchos, deverão ser firmemente amarrados aos ferros
longitudinais e, se possível, não havendo prejuízo ao aço, soldados;
e) O concreto deverá ser francamente plástico, para vazar através da armação.
Armação: os dados a seguir são limitações para se garantir a perfeita concretagem da
estaca.
Armações mais pesadas poderão ser usadas em casos especiais.
32 25 22 1/4" 3/8" e 1/2" 4
38 30 27 1/4" 1/2" e 5/8" 6
45 38 35 1/4" a 3/8" 5/8" e 3/4" 6
55 48 43 1/4" a 3/8" 5/8" e 1" 8
VI – PREPARO DA CABEÇA DA ESTACA:
Já a cargo do construtor, há necessidade de se preparar a cabeça da estaca, para a sua
perfeita ligação com os elementos estruturais.
____________________________________________________________________________________
FUNDAÇÕES - Professor Douglas Constancio – Engenheiro Lucas A. Constancio
17
Diâmetro da
estaca
(cm)
Diâmetro
interno da
tubulação
(cm)
Diâmetro
externo do
estribo
(cm)
Diâmetro do
ferro do
estribo
Diâmetro do
ferro
longitudinal
Quantidade de
ferros
longitudinais
O concreto da cabeça da estaca geralmente é de qualidade inferior, pois ao final da
concretagem há subida de excesso de argamassa, ausência de pedra britada e
possibilidade de contaminação com o barro em volta da estaca.
Por isso, a concretagem da estaca deve terminar no mínimo 20cm acima da cota de
arrasamento.
A preparação ou "quebra" da cabeça das estacas, ou seja, a remoção do concreto
excedente deve ser feita com ponteiros, os quais devem ser aplicados verticalmente. O
acabamento da cabeça deverá ser feito com o ponteiro inclinado, para se conseguir uma
superfície plana e horizontal.
A estaca deverá ficar embutida 5 cm dentro do bloco ou baldrame. Quando se usa lastro
de concreto magro, abaixo do bloco ou baldrame, a cabeça da estaca deve ficar livre 5
cm acima do mesmo. (fig.9 e 10).
____________________________________________________________________________________
FUNDAÇÕES - Professor Douglas Constancio – Engenheiro Lucas A. Constancio
18
c - Estaca tipo Franki: (Standard)
(Bucha Seca)
e areia, a qual é socada
uete (peso de 1,0 a 3,0 ton).
er abaixo as fases de execução:
Esta estaca é executada, cravando-se no terreno um tubo de revestimento (posteriormente
recuperado), cuja ponta é fechada por uma bucha de brita
energicamente por um pilão ou soq
V
____________________________________________________________________________________
FUNDAÇÕES - Professor Douglas Constancio – Engenheiro Lucas A. Constancio
19
Tubo de revestimento
1,00m
1ª
ETAPA:
Tampão de brita + areia
ou
Concreto magro
Tubo de revestimento
Pilão 1,0 a 3,0 ton.
3ª
____________________________________________________________________________________
FUNDAÇÕES - Professor Douglas Constancio – Engenheiro Lucas A. Constancio
20
Vai sacando o revestimento e socando
o concreto com o auxilio do soquete.
Tubo de revestimento
Bulbo ou cebola
ETAPA:
Armadura estribada
Detalhe da estaca terminada
4ª
ETAPA
Desvantagens:
- Alto custo
- Provoca muita vibração
- Dificuldade de transporte de equipamentos
- Espaço da obra deve ser grande para permitir o manuseio no canteiro, do equipamento
FRANKI.
Vantagens:
- Suporta cargas elevadas
- Pode ser executada abaixo do N. A.
∅cm Carga máxima
tf
Armação mínima Espaçamento entre
eixos (cm)
35 55 4∅ 5/8" 1,20
40 75 4∅ 5/8" 1,30
45 90 4∅ 5/8" 1,40
52 130 4∅ 4/4" 1,50
60 170 4∅ 7/8" 1,60
Cargas usualmente utilizadas nas estacas
VII – BLOCO DE CAPEAMENTO PARA ESTACAS:
- As estacas devem ser dispostas de modo a conduzir a um bloco de dimensões mínimas
as cargas estruturais.
- As dimensões são definidas em função do número de estacas e o diâmetro.
- São consideradas dimensões mínimas
a- Bloco com 1 estaca:
____________________________________________________________________________________
FUNDAÇÕES - Professor Douglas Constancio – Engenheiro Lucas A. Constancio
21
1,10 x S
1,10 x S
Só para cargas reduzidas, sempre
com travamento em 02 direções, no
mínimo, ideal travamento nas 04
direções.
b- Bloco com 02 estacas:
c- Bloco com 03 estacas:
d- Bloco com 4 estacas:
____________________________________________________________________________________
FUNDAÇÕES - Professor Douglas Constancio – Engenheiro Lucas A. Constancio
22
Travamento lateral entre um bloco e
outro.B
S
C
C
Para utilizar em divisa
SS
C
1,10xS ou B
C
S
S
C
S
S
e- Bloco com 05 estacas:
f- Bloco com 06 estacas:
g- Bloco com 07 estacas:
Valores de 'S' ou 'd'
a- Para estacas pré-moldadas: 2,5 x ∅
b- Para estacas moldadas in loco: 3,0 x ∅
____________________________________________________________________________________
FUNDAÇÕES - Professor Douglas Constancio – Engenheiro Lucas A. Constancio
23
C
1,41 x S
1,41 x S
C
S
S
S S
S S
S
C
S
C
Recomendação:
Limite máximo de estacas para um
único bloco
S
Valores de C e B
cmC 15
2
+=
φ
cmB 152×+= φ
Nota importante: As condições acima representam dimensões mínimas.
VIII – REFORMULAÇÃO DE BLOCOS DE ESTACAS
Quando uma estaca de um bloco não pode ser aproveitada, o bloco tem que ser reformulado
e deve atender:
a- Manter o centro de gravidade do bloco ou, no caso de não ser mantido, verificar a carga
na estaca mais carregada.
b- Manter o espaçamento mínimo entre estacas aproveitadas:
2,5 x ∅ para estacas pré-moldadas
3,0 x ∅ para estacas moldadas in loco
c- Manter uma distância mínima de 1,5 x ∅ entre qualquer estaca não aproveitada de uma
nova que a substituirá, porém sempre acima de 30cm.
d- Na reformulação não devem existir diâmetros diferentes de estacas.
Exemplo:
Admitir:
a - Caso de quebra da 1ª
estaca a ser cravada
____________________________________________________________________________________
FUNDAÇÕES - Professor Douglas Constancio – Engenheiro Lucas A. Constancio
24
Estaca quebrada
Estaca já cravada
Estaca a ser cravada
b- Caso da primeira estaca já estar cravada e a segunda estaca quebra
c- Caso de estar cravada duas estacas e quebrar uma terceira
____________________________________________________________________________________
FUNDAÇÕES - Professor Douglas Constancio – Engenheiro Lucas A. Constancio
25
IX – CAPACIDADE DE CARGA EM ESTACAS
1- Fórmulas teóricas
2- Métodos empíricos
a- Método Aoki - Velloso - 1975
b- Método Decourt - Quaresma - 1978
c- Método Velloso - 1991
Lembrança
CAPACIDADE DE CARGAS NAS ESTACAS
a- Método Decourt-Quaresma
TIPO DE SOLO K (kN/m2
) K (tf/m2
)
ARGILA 120 12
SILTE ARGILOSO 200 20
SILTE ARENOSO 250 25
AREIA 400 40
Np = SPT médio na ponta da estaca, obtido com os valores de SPT correspondentes ao
nível da ponta da estaca, o imediatamente anterior e o imediatamente posterior.
Ap = Área da seção transversal de ponta
SlqlRl ⋅= = resistência lateral
____________________________________________________________________________________
FUNDAÇÕES - Professor Douglas Constancio – Engenheiro Lucas A. Constancio
26
É verdade que experiência em fundações não se transfere, mesmo que
se queira, mas adquire-se na vida prática pela vivência.
Também é importante se Ter bons mestres, como tudo na vida.
PU
Rl
RP
Onde:
PU = capacidade de carga da estaca
Rl = Resistência lateral por atrito ao longo do fuste
RP = Resistência de ponta
RPRlPU +=
ApqpRP ×= Resistência de ponta
pNkqp ×= Capacidade de carga do solo junto à
ponta da estaca
k = fator característico do solo
Sl = área = HR ⋅⋅⋅π2 = área de contato ao longo do fuste
Onde: R = raio da estaca
H = altura da estaca
)1
3
(10 +⋅=
lN
ql = Adesão média ao longo do fuste
lN = Valor médio se SPT ao longo do fuste, sem levar em conta aqueles utilizados no
cálculo de ponta.
NOTA IMPORTANTE:
Quando: N ≤ 3 adotar 3
N ≥ 50 adotar 50
N = SPT
Finalmente temos:
0,43,1
RpRl
UP += (kN ou tf)
Fatores de Segurança
b- Método AOKI-VELLOSO
2
PU
R =RlΔ
____________________________________________________________________________________
FUNDAÇÕES - Professor Douglas Constancio – Engenheiro Lucas A. Constancio
27
PU
l
RP
PU = RP + Rl
Sendo:
PU = capacidade de carga total
RP = resistência de ponta
Rl = resistência lateral
Sendo: R = capacidade de carga
admissível
2 = coeficiente de segurança
Cálculo da resistência de ponta - RP
ApRpRp ×= ou Aprp ×
1F
Npk
rp
×
=
Np = SPT da camada de apoio da estaca
k = coef. do solo (tabela)
F1 = coeficiente do tipo de estaca (tabela)
Ap = Área da ponta da estaca.
Cálculo da resistência lateral - Rl
rllURl ×Δ×Σ=
2F
Nlk
rl
××
=
α
α = coeficiente do solo (tabela)
F2 = coeficiente do tipo de estaca (tabela)
Nl = SPT da camada (Δl)
U = perímetro da estaca
Tabela n°1
Coeficiente F1 e F2
Tipo da estaca F1 F2
FRANKI 2,50 5,0
METÁLICA 1,75 3,5
PRÉ-MOLDADA DE CONCRETO 1,75 3,5
Tabela n°2
Coeficiente K E α
____________________________________________________________________________________
FUNDAÇÕES - Professor Douglas Constancio – Engenheiro Lucas A. Constancio
28
TIPO DE SOLO K (MN/m2
) α (%)
AREIA 1,00 1,4
AREIA SILTOSA 0,80 2,0
AREIA SILTO-ARGILOSA 0,70 2,4
AREIA ARGILOSA 0,60 3,0
AREIA ARGILO-SILTOSA 0,30 2,0
SILTE 0,40 3,0
SILTE ARENOSO 0,55 2,2
SILTE ARENO-ARGILOSO 0,45 2,8
SILTE ARGILOSO 0,23 3,4
SILTE ARGILO-ARENOSO 0,25 3,0
ARGILA 0,20 6,0
ARGILA ARENOSA 0,35 2,4
ARGILA ARENO SILTOSA 0,30 2,8
ARGILA SILTOSA 0,22 4,0
ARGILA SILTO-ARENOSA 0,33 3,0
X – DIMENSIONAMENTO DAS ESTACAS
1. Pilar isolado
eP
P
n ×= 10,1
ONDE: n = numero de estacas
P = carga do pilar
eP = carga de trabalho da estaca
1,10 = coeficiente onde leva em conta o peso próprio da estaca
2. Pilar de divisa
cm
b
ae 5,2
2
0
−−=
ONDE: bo = menor dimensão do pilar
el
l
PR
−
×= 11
eP
R
n 1
1 10,1 ×=
11 PRP −=Δ onde:
2
22
P
PR
Δ
−=
____________________________________________________________________________________
FUNDAÇÕES - Professor Douglas Constancio – Engenheiro Lucas A. Constancio
29
eP
R
n 2
2 10,1 ×=
OBSERVAÇÕES:
a- Devido ao formato e as dimensões dos equipamentos de cravação das estacas, deve-se
respeitar uma distância mínima do centro da estaca a divisa a. Onde a é característica do
fabricante (tabelado).
b- Até um numero de 04 estacas na divisa, podem ser alinhadas, minimizando o valor
da excentricidade.
c- Não podemos utilizar ∅ diferentes de estacas em um mesmo bloco.
____________________________________________________________________________________
FUNDAÇÕES - Professor Douglas Constancio – Engenheiro Lucas A. Constancio
30
S
a c
S
P1 P2
P2
P1
l
R1 R2
3- Associação de pilares próximos
Quando temos a necessidade da associação de dois ou mais pilares num mesmo bloco deve-
se promover a coincidência do ponto de aplicação da resultante das cargas com o centro de
gravidade do bloco.
l
C.G.
x
21
2
PP
lP
X
+
×
=
____________________________________________________________________________________
FUNDAÇÕES - Professor Douglas Constancio – Engenheiro Lucas A. Constancio
31
eP
PP
n
21
10,1
+
×=
Exercícios de cálculo de capacidade de carga de estacas
Exercício n°1
Dado o perfil de sondagem abaixo:
Pede-se: calcular a capacidade de carga para uma estaca tipo Strauss com um comprimento
nominal de 7,00m; Diâmetro = 38cm, utilizando o método de DECOURT-QUARESMA.
PROF. (m) SPT DESCRIÇAO DO MATERIAL
1 3
2 4
Areia fina pouco siltosa, fofa
amarela clara 2,00
3 8
4 10
5 12
6 13
7 18
Areia fina siltosa,
Mediamente compacta,
Vermelha clara.
7,00
8 25
9 28
10 32
11 43
12 I.P.
Silte argiloso compacto,
Amarelo escuro.
12,00
RpRlPU +=
ApqpRp ×= Resistência de ponta
pNkqp ×=
6,18
3
251318
=
++
=pN
2
22
113,0
4
38,0
4
m
d
Ap =
×
=
×
=
ππ
74406,18400 =×=qp
Tabela para areia
kNApqpRp 72,840113,07440 =×=×=
SlqlRl ×= Resistência por atrito lateral
⎟⎟
⎠
⎞
⎜⎜
⎝
⎛
+×= 1
3
10
lN
ql
4,7
5
1210843
=
++++
=lN
2
/6,341
3
4,7
10 mkNql =⎟
⎠
⎞
⎜
⎝
⎛
+×= / m
2
96,5519,014,322 mHRSl =×××=×××= π (Obs.: l - 2,0m = 5,0 m)
____________________________________________________________________________________
FUNDAÇÕES - Professor Douglas Constancio – Engenheiro Lucas A. Constancio
32
Rp
Rl
kNSlqlRl 20,20696,56,34 =×=×=
RpRlPU +=
0,43,1
RpRl
UP +=
kNUP 80,368
0,4
72,840
3,1
20,206
=+=
Ou 36,88tf.
Exercício nº 2
Calcular a capacidade de carga da estaca; conforme características abaixo como mostra
perfil de sondagem.
PROF. (m) SPT Descrição do material 0,00
1,00 5
2,00 7
Argila arenosa
2,00
3,00 8
4,00 12
Areia siltosa
4,00
5,00 22
6,00 25
7,00 40
Silte arenoso
7,00
Limite da sondagem
Dados:
Estaca Pré-moldada de concreto
∅ = 26cm = 0,26m
l = 6,0metros
Ap= 531cm2
= 0,05m2
= área
U = 82cm = 0,82m = perímetro
RlRpPU +=
Rp = Resistência de ponta
AprpRp ×=
1F
Npk
rp
×
=
22
/785/85,7
75,1
2555,0
mtfmMNrp ==
×
=
tRp 25,3905,0785 =×=
____________________________________________________________________________________
FUNDAÇÕES - Professor Douglas Constancio – Engenheiro Lucas A. Constancio
33
Nota:
Utilizar o método de cálculo de
Aoki - Velloso
K= tabela n°2 (silte arenoso) = 0,55
Np= 25 golpes
F1= tabela n°1 (estaca pré-moldada de
concreto) = 1,75
Rl = Resistência lateral
rllURl ×Δ×Σ=
2F
Nlk
rl
××
=
α
( MN/m2
= 100 tf/m2
)
l
comprimento
α %
tabela 02
K(MN/m2
)
Tabela 02
Nl
SPT
F2
Tabela1
rl
1,00 2,4 0,35 5 3,5 1,20
2,00 2,4 0,35 7 3,5 1,68
3,00 2,0 0,80 8 3,5 3,66
4,00 2,0 0,80 12 3,5 5,48
5,00 2,2 0,55 22 3,5 7,60
6,00 2,2 0,55 25 3,5 8,64
- - - - - Σ =
28,26tf/m2
tfRl 17,2382,026,28 =×=
RlRpPU +=
tfPU 42,6217,2325,39 =+=
tf
PU
R 2,31
2
42,62
2
===
Exercício n°3
Dado o perfil de sondagem abaixo:
Prof (m) SPT Descrição do material
1 2
2 2
3 3
Argila silto arenosa mole,
vermelha clara.
3,00
4 5
5 8
6 9
7 12
8 19
9 23
Silte arenoso pouco
compacto a compacto,
amarelo claro.
N.A.=7,00
9,00
10 25
11 41
12 48
13 54
14 61
15 I.P.
Areia fina argilosa muito
compacta, variegada
vermelha clara/escura.
15,00
____________________________________________________________________________________
FUNDAÇÕES - Professor Douglas Constancio – Engenheiro Lucas A. Constancio
34
Pede-se:
Calcular a capacidade de carga para uma estaca do tipo Franki com um comprimento
nominal de 10m e diâmetro de 0,42m, utilizando o método de DECOURT- QUARESMA e
o método de AOKI - VELLOSO.
U = 123 cm; A = 1385 cm2
Exercício de dimensionamento por estacas:
Exercício n°01
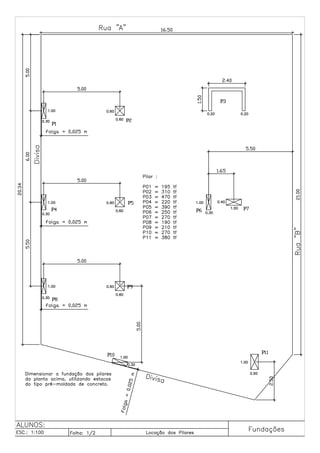
Dimensionar o pilar isolado abaixo, utilizando estacas pré-moldadas de concreto.
Dados: ∅ = 50 cm
Pe = PU: carga de trabalho = 90 tf
Definir seu bloco de capeamento.
79,0
90
6510,110,1
=
×
=
×
=
eP
P
n ; 1 estaca
S= 2,5 x ∅ = 2,5 x 0,50 = 1,25m
Exercício n°02
Dimensionar o pilar isolado abaixo utilizando estaca tipo pré-moldada de concreto
∅ = 30 cm
Pe = PU = 40 tf
____________________________________________________________________________________
FUNDAÇÕES - Professor Douglas Constancio – Engenheiro Lucas A. Constancio
35
P = 65 tf
25
25
1,10S = 1,40 m
1,10S = 1,40 m
S=1,25m
1,10 x 1,25 = 1,38 ∴1,40m
40
60
P=200 tf
65,5
40
20010,110,1
∴=
×
=
×
=
eP
P
n estacas
S = 2,5 x ∅ = 2,5 x 0,30 = 0,75 m
mcmc 30,015
2
30
15
2
=+=+=
φ
Exercício n°03
Dimensionar o esquema abaixo, utilizando:
Estacas do tipo Pré-moldada de concreto
∅ = 35 cm; PU= 55 tf
Dimensionamento do P1
025,0
2
−−=
bo
ae
a = 0,40m (tabela)
me 25,0025,0
2
25,0
40,0 =−−=
____________________________________________________________________________________
FUNDAÇÕES - Professor Douglas Constancio – Engenheiro Lucas A. Constancio
36
S
C
S
S
2,10m1,35m
V.A.
4,00
DIVISA
.25
0,025m
.25
1,90
1,00
P2=200 tfP1=150 tf
tP
el
l
R 9,15950,1
25,04
4
11 =×
−
=×
−
=
419,3
55
9,15910,110,1
∴=
×
=
×
=
eP
P
n estacas
S= 2,5 x ∅ = 2,5 x 0,35 = 0,875m
mcmcmc 325,05,3215
2
35
15
2
==+=+=
φ
Dimensionamento de P2
2
22
P
PR
Δ
−=
1509,15911 −=−=Δ PRP
tfR 5,195
2
1509,159
2002 =
−
−=
491,3
55
5,19510,110,1
∴=
×
=
×
=
eP
P
n estacas
____________________________________________________________________________________
FUNDAÇÕES - Professor Douglas Constancio – Engenheiro Lucas A. Constancio
37
3,30
S
S
S
a
C
0,75m
C
S
1,55
1,55
____________________________________________________________________________________
FUNDAÇÕES - Professor Douglas Constancio – Engenheiro Lucas A. Constancio
38
XI – COMPORTAMENTO DE GRUPO DE ESTACAS
____________________________________________________________________________________
FUNDAÇÕES - Professor Douglas Constancio – Engenheiro Lucas A. Constancio
39
Difere do comportamento de um estaca isolada, porque no grupo de estacas é maior
o recalque do que numa estaca isolada, devido ao efeito do bulbo de pressões das várias
estacas, resultando um bloco de pressões de dimensões maiores. Inclusive a capacidade de
suporte de um grupo de estacas é menor do que a soma das capacidades de cargas das
estacas consideradas isoladamente.
Segundo a regra de Feld: Consiste em descontar 1/16 da eficiência de cada
estaca, para cada estaca vizinha a ela. O método de Feld não se refere a um grupo
específica de estacas.
Obs.: O método de Feld não leva em consideração a distância entre as estacas, e
pode ser equacionado da seguinte forma:
∑
∑ ⋅
=
+++
⋅++⋅+⋅
= m
i
m
ii
m
mm
n
en
nnn
enenen
e
1
1
21
2211
...
...
Bloco com 02 estacas:
Bloco com 03 estacas:
a-)
b-)
Bloco com 4 estacas:
____________________________________________________________________________________
FUNDAÇÕES - Professor Douglas Constancio – Engenheiro Lucas A. Constancio
40
e = 93,75 %
e = 91,67 %
e = 87,50 %
Bloco com 05 estacas:
Bloco com 06 estacas:
Bloco com 07 estacas:
Onde e = Eficiência
Exemplo:
____________________________________________________________________________________
FUNDAÇÕES - Professor Douglas Constancio – Engenheiro Lucas A. Constancio
41
e = 81,25 %
e = 80,00 %
e = 77,00 %
e = 78,50 %
Determinar a eficiência de um bloco de seis estacas, segundo o Método de Feld:
Bloco com 06 estacas:
Cálculos:
1a
condição: 04 estacas com 03 estacas vizinhas; logo:
( ) %82
16
13
16
3
16
16
4 ≈=−⇒
vizinhas
estacas
2a
condição: 02 estacas com 05 estacas vizinhas; logo:
( ) %69
16
11
16
5
16
16
2 ≈=−⇒
vizinhas
estacas
Portanto:
%77
24
%692%824
...
...
1
1
21
2211
=
+
⋅+⋅
=
⋅
=
+++
⋅++⋅+⋅
=
∑
∑
m
i
m
ii
m
mm
total
n
en
nnn
enenen
e
____________________________________________________________________________________
FUNDAÇÕES - Professor Douglas Constancio – Engenheiro Lucas A. Constancio
42
e = ?
e = ?
e = ?
Anexos:
Projeto Estacas 01
Projeto Estacas 02
____________________________________________________________________________________
FUNDAÇÕES - Professor Douglas Constancio – Engenheiro Lucas A. Constancio
43
Estacas (6)
Estacas (6)
Estacas (6)

Estacas (6)

  • 1.
    UNIVERSIDADE: _____________________ Curso: ________________________ FundaçõesProfundas: “Estacas” Aluno: _____________________________ RA: __________ Professor: Professor Douglas Constancio Disciplina: Fundações I ____________________________________________________________________________________ FUNDAÇÕES - Professor Douglas Constancio – Engenheiro Lucas A. Constancio 0 Data: Americana, junho de 2004.
  • 2.
    ESTACAS: 01 – CONSIDERAÇÕESGERAIS: São consideradas como elementos estruturais e podem ser: ♦ Madeira ♦ Aço ♦ Concreto Podem ser armadas ou não. São dimensionadas para suportar cargas verticais, horizontais e inclinadas. 02 – DEVEM SER UTILIZADAS QUANDO: (considerações de norma) a - Transmitir as cargas de uma estrutura através de uma camada de solo de baixa resistência ou através de água, até uma camada de solo resistente que garanta o apoio adequado. A forma de trabalho das estacas assemelha-se aos pilares de uma estrutura. b - Transmitir a carga a uma certa espessura de solo de resistência não muito elevada, utilizando para isso o atrito lateral que se desenvolve entre o solo e a estaca. c - Compactar solos granulares para aumentar a capacidade de carga desses solos. d - Proporcionar escoramento lateral a certas estruturas ou resistir a forças laterais que se exerçam sobre elas (como o caso de pontes), nesses casos é comum utilizar estacas inclinadas. e - Proporcionar ancoragem a qualquer efeito que tenha a tendência de “levantar” a estrutura (estaca de tração). f - Alcançar profundidades onde não tenha a ocorrência de erosão ou outro efeito nocivo que comprometa a estabilidade da estrutura. g - Proteger estruturas marítimas contra o impacto de navios ou outros objetos flutuantes. 03 – CLASSIFICAÇÃO DAS ESTACAS: a - Quanto à forma de trabalho: • Estaca de ponta: Capacidade de carga se dá com o apoio direto a uma camada resistente. • Estaca de atrito: Capacidade de carga se dá através do atrito lateral, produzido contra o solo adjacente. • Estaca mista: Utiliza os dois efeitos acima. ____________________________________________________________________________________ FUNDAÇÕES - Professor Douglas Constancio – Engenheiro Lucas A. Constancio 1
  • 3.
    b - Formade instalação no terreno: • Cravação • Escavação ou perfuração do terreno • Reação ou prensagem • Injeção d’água 04 – TIPOS DE ESTACAS: Podem ser (quanto ao material): a – madeira b – concreto c – Aço d – Mista: Madeira + concreto Concreto + Aço Categorias: a – Estacas pré-moldadas: Madeira Aço Concreto b – Moldada in loco c – Mistas (fundamentalmente pré-moldadas). 05 – CARACTERÍSTICAS DAS ESTACAS: Neste capítulo estaremos abordando as características técnicas e executivas das estacas usualmente empregadas em nosso mercado de trabalho, sendo que algumas serão detalhadas num capítulo especial denominado de fundações especiais. Estacas pré-moldadas: Estacas de madeira: • São utilizadas sempre abaixo do nível d’água do subsolo. • Duração ilimitada abaixo do N.A., pois não sofrem o ataque de organismos aeróbios e organismos inferiores, que delas se alimentam, causando seu apodrecimento. • Permitem uma emenda fácil, como pode ser visto abaixo. Esquema tradicional de emendas Esquema de proteção ____________________________________________________________________________________ FUNDAÇÕES - Professor Douglas Constancio – Engenheiro Lucas A. Constancio 2 Chapa de aço Parafuso com rosca e porca Anel metálico Ponteira metálica
  • 4.
    Madeiras mais utilizadassão: • Eucalipto • Aroeira • Peroba do campo (rosa) Diâmetros usuais: • 25 cm • 30 cm • 35 cm • 40 cm O diâmetro da estaca de madeira é determinado pela fórmula empírica. d = do + 0,02 x l Onde: do = diâmetro (de tabela) l = comprimento Cargas de trabalho x diâmetro: Ø (cm) C.T. (tf). 25 28 30 33 35 38 (*) 40 45 (*) Desvantagens: • Dificuldade de encontrar. • Só para ser utilizada abaixo do N.A. • Ataque por microorganismos quando utilizada acima do N.A. • Limitações de carga. • Alto custo. Vantagens: • Facilidade de emendas. • Duração ilimitada quando utilizada abaixo do N.A. • Oferece grande resistência a solicitação oriunda de levantamentos e transportes. ____________________________________________________________________________________ FUNDAÇÕES - Professor Douglas Constancio – Engenheiro Lucas A. Constancio 3 } Diâmetros aparentes. Comprimento disponível de 4 á 10 metros com possibilidade de emendas. (*) São consideradas especiais.
  • 5.
    Estacas Metálicas: Estas estacasno Brasil possuem 03 categorias: • Perfis (novos) • Trilho de trem (usados) • Tubos (novos ou usados) Perfis: Podem ser utilizados isolados ou soldados como pode ser visto abaixo, formando a área que precisamos. Tubos: Podem ser preenchidos de concreto ou não e também podem ser cravados com a ponta aberta ou fechada. Trilhos: São conhecidos como estacas “TR”. São trilhos de ferrovias que não servem mais como rolamento, ou seja, perdera 10% de seu peso original, os quais possuem uma ótima utilização como elemento de fundação profunda. Podem ser utilizados isoladamente ou conjugados como podem ser vistos abaixo. DESENHO pág. 6 TIPOS PRINCIPAIS DE TRILHOS DISPONÍVEIS NO MERCADO: Dimensões Trilhos A B C D TR - 37 122,2 122,2 62,7 13,5 DESENHO pág. 6 TR – 45 142,9 130,2 65,1 14,3 TR – 50 152,4 136,5 68,2 14,3 TR - 67 168,3 139,7 69,0 15,9 ____________________________________________________________________________________ FUNDAÇÕES - Professor Douglas Constancio – Engenheiro Lucas A. Constancio 4 Solda Solda Perfil I Perfil I
  • 6.
    Desvantagens: • Falta deconhecimento técnico do produto • Poucos fornecedores Vantagens: • Não fissuram – não trincam – não quebram. • Fácil descarga e manuseio. • Custo do frete mais barato em vista de seu peso. • Pouca vibração de cravação. • Facilidade de emendas. • Podem ser utilizadas em galpões com altura de até 4,00 metros. • Elevada resistência à flexão e compressão. ESTACAS DE CONCRETO (UM CAPÍTULO A PARTE): Tipos: Estacas curtas: L 10 m≤ Estacas longas: L > 10 m ____________________________________________________________________________________ FUNDAÇÕES - Professor Douglas Constancio – Engenheiro Lucas A. Constancio 5 { Pré – moldadas e Moldadas in Loco L Desprezamos a ponta.
  • 7.
    ____________________________________________________________________________________ FUNDAÇÕES - ProfessorDouglas Constancio – Engenheiro Lucas A. Constancio 6____________________________________________________________________________________ FUNDAÇÕES - Professor Douglas Constancio – Engenheiro Lucas A. Constancio 6
  • 8.
    ____________________________________________________________________________________ FUNDAÇÕES - ProfessorDouglas Constancio – Engenheiro Lucas A. Constancio 7____________________________________________________________________________________ FUNDAÇÕES - Professor Douglas Constancio – Engenheiro Lucas A. Constancio 7
  • 9.
    1 – EstacasPré-moldadas de Concreto: São segmentos de concreto armado ou protendido com seção quadrada, ortogonal, circular vazadas ou não, cravada no solo com o auxílio de bate estacas. Detalhe típico de uma emenda. Este tipo de emenda deve ser utilizado em estacas onde além dos esforços de compressão atuam também os esforços de tração e flexão. É feita a superposição dos elementos, já com as luvas ancoradas nos mesmos, aplicando-se a solda em todo o contorno da emenda. ____________________________________________________________________________________ FUNDAÇÕES - Professor Douglas Constancio – Engenheiro Lucas A. Constancio 8
  • 10.
    ____________________________________________________________________________________ FUNDAÇÕES - ProfessorDouglas Constancio – Engenheiro Lucas A. Constancio 9____________________________________________________________________________________ FUNDAÇÕES - Professor Douglas Constancio – Engenheiro Lucas A. Constancio 9
  • 11.
    Desvantagens: • Dificuldades detransporte. • Devem ser armadas para levantamento e transporte. • Limitadas em seção e comprimento, devido ao peso próprio. • Dificuldade de cravação em solos compactos, principalmente em areais compactas. • Danos na cabeça quando encontra obstrução. • Cortes e emendas de difícil execução. • Exige determinação precisa de comprimento. Vantagens: • Duração ilimitada quando abaixo do N.A. • Boa resistência aos esforços de flexão e cisalhamento. • Boa qualidade do concreto (pois é confeccionada em fábricas apropriadas). • Diâmetro e comprimento precisos. • Controle do concreto feito em laboratório. • Boa capacidade de carga. 2 – Estaca Mega: São conhecidas também como estacas de reação, sua utilização é feita para reforçar fundações e também em locais onde não podemos admitir vibrações. ____________________________________________________________________________________ FUNDAÇÕES - Professor Douglas Constancio – Engenheiro Lucas A. Constancio 10 0,50 m São segmentos curtos, cravados um após o outro, justaposto por meio de um macaco hidráulico que reage contra um peso que pode ser a própria estrutura a ser reforçada.
  • 12.
    ____________________________________________________________________________________ FUNDAÇÕES - ProfessorDouglas Constancio – Engenheiro Lucas A. Constancio 11 Vazio ∅ = 5cm 0,50m 0,20m 0,20m Cabeça (elemento de concreto ou chapa metálica) Macaco hidráulico Estrutura a ser reforçada 0,50m Reação Estaca Mega
  • 13.
    3 – Estacasde Concreto Moldadas “In Loco”: a - Estaca de Broca Manual: São executadas com o auxílio de um trado manual do tipo espiral ou cavadeira, em solos coesivos e sempre acima do N.A. Diâmetros: 6” = 15 cm 5 Ton 8” = 25 cm 10 Ton Comprimentos: 5.0 a 6.0 metros. Desvantagens: • Concreto feito a mão (baixa qualidade). • Material de escavação mistura com o concreto. • Só pode ser executada em solos coesivos. • Só pode ser executada acima do N.A. Vantagens: • Elimina transporte de equipamento. • Facilidade de execução. • Baixo Custo. ____________________________________________________________________________________ FUNDAÇÕES - Professor Douglas Constancio – Engenheiro Lucas A. Constancio 12 Armadura Concreto Bulbo "utiliza concreto apiloado". Bulbo ou cebola
  • 14.
    b - Estacatipo Strauss: São estacas moldadas “in loco”, executadas com revestimento metálico recuperável, de ponta aberta, para permitir a escavação do solo. Podem ser em concreto simples ou armado. Como são estacas muito utilizadas no mercado da Construção Civil estamos colocando abaixo as características das mesmas, sugeridas pela APEMOL (Associação Paulista de Empresas Executoras de Estacas Moldadas no Local, do Sistema Strauss – 1979). Desvantagens: • Não pode ser executada abaixo do N.A. • Concreto de baixa qualidade (feito à mão). • Muita lama proveniente escavação. • Execução lenta. Vantagens: • Simples Execução. • Baixo Custo. • Capacidade de carga e diâmetros diversos. I – CARACTERÍSTICAS: 1.1 - Classificação As estacas moldadas no local, tipo Strauss, são estacas executadas com revestimento metálico recuperável, de ponta aberta, para permitir a escavação do solo. Podem ser em concreto simples ou armado. 1.2 - Utilização São usadas para resistir a esforços verticais de compressão, de tração ou ainda, esforços horizontais conjugados ou não com esforços verticais. 1.3 - Disponibilidade As estacas Strauss estão disponíveis no mercado com cargas e características técnicas seguintes: CAPACIDADE DE CARGA (t) DIÂMETRO NOMINAL (cm) DIÂMETRO INTERNO DA TUBULAÇÃO (cm) DISTÂNCIA MÍNIMA DO EIXO DA ESTACA A DIVISA (cm) 20 25 20 15 30 32 25 20 40 38 30 25 60 45 38 30 90 55 48 35 NOTAS: - Distância mínima entre eixos de estacas: 3 diâmetros nominais. ____________________________________________________________________________________ FUNDAÇÕES - Professor Douglas Constancio – Engenheiro Lucas A. Constancio 13 - Estacas sujeitas à tração estão sujeitas à armação (utilizar φnominal ≥ 32 cm).
  • 15.
    1.4 - Vantagens Asestacas Strauss apresentam vantagem pela leveza e simplicidade do equipamento que emprega. Com isso, pode ser utilizada em locais confinados, em terrenos acidentados ou ainda no interior de construções existentes, com pé direito reduzido. O processo não causa vibrações, o que é de muita importância em obras que as edificações vizinhas, dada a natureza do subsolo e de suas próprias deficiências, sofreriam danos sérios com essas vibrações. Por ser moldada no local, fica acabada com comprimento certo, arrasada na cota prevista, não havendo perda de material nem necessidade de suplementação. II – EQUIPAMENTO: Consta de um tripé de madeira ou de aço, um guincho acoplado a motor a explosão ou elétrico, uma sonda de percussão munida de válvula em sua extremidade inferior para retirada de terra, um soquete com aproximadamente 300 quilos, linhas de tubulação de aço, com elementos de 2,00 a 3,00 metros de comprimento, rosqueáveis entre si, um guincho manual para retirada da tubulação, além de roldanas, cabos e ferramentas. (fig.1) Fig. 1 - Descrição do Equipamento. III – PROCESSO EXECUTIVO: 3.1 - Centralização da estaca O tripé é localizado de tal maneira que o soquete preso ao cabo de aço fique centralizado no piquete de locação. 3.2 - Início da perfuração Com o soquete é iniciada a perfuração até a profundidade de 1,00 a 2,00 metros, furo esse que servirá de guia para a introdução do primeiro tubo, dentado na extremidade inferior, chamado "coroa". (fig.2) ____________________________________________________________________________________ FUNDAÇÕES - Professor Douglas Constancio – Engenheiro Lucas A. Constancio 14
  • 16.
    Fig. 2 -Início da Perfuração 3.3 - Perfuração Com a introdução da coroa, o soquete é substituído pela sonda de percussão, a qual, por golpes sucessivos vai retirando o solo do interior e abaixo da coroa, e a mesma vai se introduzindo no terreno. Quando estiver toda cravada, é rosqueado o tubo seguinte, e assim por diante, até atingir uma camada de solo resistente e/ou que se tenha uma comprimento de estaca considerado suficiente para garantia de carga de trabalho da mesma. A seguir, com a sonda, procede-se à limpeza da lama e da água acumulada durante a perfuração. (fig.3 e 4). Fig. 3 - Colocação da Coroa. Fig. 4 - Estaca perfurada. ____________________________________________________________________________________ FUNDAÇÕES - Professor Douglas Constancio – Engenheiro Lucas A. Constancio 15
  • 17.
    IV – CONCRETAGEM 4.1- Nessa etapa, a sonda é substituída pelo soquete. É lançado concreto no tubo em quantidade suficiente para se ter uma coluna de aproximadamente 1 metro. Sem puxar a tubulação apiloa-se o concreto formando uma espécie de bulbo. (fig.5) Fig. 5 - Início da concretagem. 4.2 - Para execução do fuste, o concreto é lançado dentro da tubulação e, à medida que é apiloado, esta vai sendo retirada com emprego de guincho manual. (fig.6, 7 e 8) Para garantia da continuidade do fuste, deve ser mantida, dentro da tubulação durante o apiloamento, uma coluna de concreto suficiente para que o mesmo ocupe todo o espaço perfurado e eventuais vazios no subsolo. Dessa forma o pilão não tem possibilidade de entrar em contato com o solo da parede da estaca e provocar desbarrancamento e mistura de solo com o concreto. Fig. 6 - Início do apiloamento. Fig. 7 Fig. 8 ____________________________________________________________________________________ FUNDAÇÕES - Professor Douglas Constancio – Engenheiro Lucas A. Constancio 16
  • 18.
    4.3 - Aconcretagem é feita até um pouco acima da cota de arrasamento da estaca, deixando-se um excesso para o corte da cabeça da estaca. 4.4 - O concreto utilizado deve consumir, no mínimo 300 quilos de cimento por metro cúbico e será de consistência plástica. É importante frisar que a coluna de concreto plástico dentro das tubulações, por seu próprio peso, já tende a preencher a escavação e contrabalançar a pressão do lençol freático, se existente. V – COLOCAÇÃO DOS FERROS A operação final será a colocação dos ferros de espera para amarração aos blocos e baldrames, sendo colocados 4 ferros isolados, com 2 metros de comprimento, que são simplesmente enfiados no concreto. Os ferros servirão apenas para ligação das estacas com o bloco ou baldrame, não constituindo uma armação propriamente dita. Quando houver necessidade de colocação da armação para resistir a esforços outros que não de compressão, devem-se tomar os seguintes cuidados: a) A bitola mínima para execução de estacas armadas é 32cm; b) Os estribos devem ser espaçados no mínimo 30 centímetros; c) As armações serão sem emendas até 6 metros de comprimento, uma vez que os tripés usuais têm 7 metros de comprimento; d) Os estribos, sem ganchos, deverão ser firmemente amarrados aos ferros longitudinais e, se possível, não havendo prejuízo ao aço, soldados; e) O concreto deverá ser francamente plástico, para vazar através da armação. Armação: os dados a seguir são limitações para se garantir a perfeita concretagem da estaca. Armações mais pesadas poderão ser usadas em casos especiais. 32 25 22 1/4" 3/8" e 1/2" 4 38 30 27 1/4" 1/2" e 5/8" 6 45 38 35 1/4" a 3/8" 5/8" e 3/4" 6 55 48 43 1/4" a 3/8" 5/8" e 1" 8 VI – PREPARO DA CABEÇA DA ESTACA: Já a cargo do construtor, há necessidade de se preparar a cabeça da estaca, para a sua perfeita ligação com os elementos estruturais. ____________________________________________________________________________________ FUNDAÇÕES - Professor Douglas Constancio – Engenheiro Lucas A. Constancio 17 Diâmetro da estaca (cm) Diâmetro interno da tubulação (cm) Diâmetro externo do estribo (cm) Diâmetro do ferro do estribo Diâmetro do ferro longitudinal Quantidade de ferros longitudinais
  • 19.
    O concreto dacabeça da estaca geralmente é de qualidade inferior, pois ao final da concretagem há subida de excesso de argamassa, ausência de pedra britada e possibilidade de contaminação com o barro em volta da estaca. Por isso, a concretagem da estaca deve terminar no mínimo 20cm acima da cota de arrasamento. A preparação ou "quebra" da cabeça das estacas, ou seja, a remoção do concreto excedente deve ser feita com ponteiros, os quais devem ser aplicados verticalmente. O acabamento da cabeça deverá ser feito com o ponteiro inclinado, para se conseguir uma superfície plana e horizontal. A estaca deverá ficar embutida 5 cm dentro do bloco ou baldrame. Quando se usa lastro de concreto magro, abaixo do bloco ou baldrame, a cabeça da estaca deve ficar livre 5 cm acima do mesmo. (fig.9 e 10). ____________________________________________________________________________________ FUNDAÇÕES - Professor Douglas Constancio – Engenheiro Lucas A. Constancio 18
  • 20.
    c - Estacatipo Franki: (Standard) (Bucha Seca) e areia, a qual é socada uete (peso de 1,0 a 3,0 ton). er abaixo as fases de execução: Esta estaca é executada, cravando-se no terreno um tubo de revestimento (posteriormente recuperado), cuja ponta é fechada por uma bucha de brita energicamente por um pilão ou soq V ____________________________________________________________________________________ FUNDAÇÕES - Professor Douglas Constancio – Engenheiro Lucas A. Constancio 19 Tubo de revestimento 1,00m 1ª ETAPA: Tampão de brita + areia ou Concreto magro Tubo de revestimento Pilão 1,0 a 3,0 ton.
  • 21.
    3ª ____________________________________________________________________________________ FUNDAÇÕES - ProfessorDouglas Constancio – Engenheiro Lucas A. Constancio 20 Vai sacando o revestimento e socando o concreto com o auxilio do soquete. Tubo de revestimento Bulbo ou cebola ETAPA: Armadura estribada Detalhe da estaca terminada 4ª ETAPA
  • 22.
    Desvantagens: - Alto custo -Provoca muita vibração - Dificuldade de transporte de equipamentos - Espaço da obra deve ser grande para permitir o manuseio no canteiro, do equipamento FRANKI. Vantagens: - Suporta cargas elevadas - Pode ser executada abaixo do N. A. ∅cm Carga máxima tf Armação mínima Espaçamento entre eixos (cm) 35 55 4∅ 5/8" 1,20 40 75 4∅ 5/8" 1,30 45 90 4∅ 5/8" 1,40 52 130 4∅ 4/4" 1,50 60 170 4∅ 7/8" 1,60 Cargas usualmente utilizadas nas estacas VII – BLOCO DE CAPEAMENTO PARA ESTACAS: - As estacas devem ser dispostas de modo a conduzir a um bloco de dimensões mínimas as cargas estruturais. - As dimensões são definidas em função do número de estacas e o diâmetro. - São consideradas dimensões mínimas a- Bloco com 1 estaca: ____________________________________________________________________________________ FUNDAÇÕES - Professor Douglas Constancio – Engenheiro Lucas A. Constancio 21 1,10 x S 1,10 x S Só para cargas reduzidas, sempre com travamento em 02 direções, no mínimo, ideal travamento nas 04 direções.
  • 23.
    b- Bloco com02 estacas: c- Bloco com 03 estacas: d- Bloco com 4 estacas: ____________________________________________________________________________________ FUNDAÇÕES - Professor Douglas Constancio – Engenheiro Lucas A. Constancio 22 Travamento lateral entre um bloco e outro.B S C C Para utilizar em divisa SS C 1,10xS ou B C S S C S S
  • 24.
    e- Bloco com05 estacas: f- Bloco com 06 estacas: g- Bloco com 07 estacas: Valores de 'S' ou 'd' a- Para estacas pré-moldadas: 2,5 x ∅ b- Para estacas moldadas in loco: 3,0 x ∅ ____________________________________________________________________________________ FUNDAÇÕES - Professor Douglas Constancio – Engenheiro Lucas A. Constancio 23 C 1,41 x S 1,41 x S C S S S S S S S C S C Recomendação: Limite máximo de estacas para um único bloco S
  • 25.
    Valores de Ce B cmC 15 2 += φ cmB 152×+= φ Nota importante: As condições acima representam dimensões mínimas. VIII – REFORMULAÇÃO DE BLOCOS DE ESTACAS Quando uma estaca de um bloco não pode ser aproveitada, o bloco tem que ser reformulado e deve atender: a- Manter o centro de gravidade do bloco ou, no caso de não ser mantido, verificar a carga na estaca mais carregada. b- Manter o espaçamento mínimo entre estacas aproveitadas: 2,5 x ∅ para estacas pré-moldadas 3,0 x ∅ para estacas moldadas in loco c- Manter uma distância mínima de 1,5 x ∅ entre qualquer estaca não aproveitada de uma nova que a substituirá, porém sempre acima de 30cm. d- Na reformulação não devem existir diâmetros diferentes de estacas. Exemplo: Admitir: a - Caso de quebra da 1ª estaca a ser cravada ____________________________________________________________________________________ FUNDAÇÕES - Professor Douglas Constancio – Engenheiro Lucas A. Constancio 24 Estaca quebrada Estaca já cravada Estaca a ser cravada
  • 26.
    b- Caso daprimeira estaca já estar cravada e a segunda estaca quebra c- Caso de estar cravada duas estacas e quebrar uma terceira ____________________________________________________________________________________ FUNDAÇÕES - Professor Douglas Constancio – Engenheiro Lucas A. Constancio 25
  • 27.
    IX – CAPACIDADEDE CARGA EM ESTACAS 1- Fórmulas teóricas 2- Métodos empíricos a- Método Aoki - Velloso - 1975 b- Método Decourt - Quaresma - 1978 c- Método Velloso - 1991 Lembrança CAPACIDADE DE CARGAS NAS ESTACAS a- Método Decourt-Quaresma TIPO DE SOLO K (kN/m2 ) K (tf/m2 ) ARGILA 120 12 SILTE ARGILOSO 200 20 SILTE ARENOSO 250 25 AREIA 400 40 Np = SPT médio na ponta da estaca, obtido com os valores de SPT correspondentes ao nível da ponta da estaca, o imediatamente anterior e o imediatamente posterior. Ap = Área da seção transversal de ponta SlqlRl ⋅= = resistência lateral ____________________________________________________________________________________ FUNDAÇÕES - Professor Douglas Constancio – Engenheiro Lucas A. Constancio 26 É verdade que experiência em fundações não se transfere, mesmo que se queira, mas adquire-se na vida prática pela vivência. Também é importante se Ter bons mestres, como tudo na vida. PU Rl RP Onde: PU = capacidade de carga da estaca Rl = Resistência lateral por atrito ao longo do fuste RP = Resistência de ponta RPRlPU += ApqpRP ×= Resistência de ponta pNkqp ×= Capacidade de carga do solo junto à ponta da estaca k = fator característico do solo
  • 28.
    Sl = área= HR ⋅⋅⋅π2 = área de contato ao longo do fuste Onde: R = raio da estaca H = altura da estaca )1 3 (10 +⋅= lN ql = Adesão média ao longo do fuste lN = Valor médio se SPT ao longo do fuste, sem levar em conta aqueles utilizados no cálculo de ponta. NOTA IMPORTANTE: Quando: N ≤ 3 adotar 3 N ≥ 50 adotar 50 N = SPT Finalmente temos: 0,43,1 RpRl UP += (kN ou tf) Fatores de Segurança b- Método AOKI-VELLOSO 2 PU R =RlΔ ____________________________________________________________________________________ FUNDAÇÕES - Professor Douglas Constancio – Engenheiro Lucas A. Constancio 27 PU l RP PU = RP + Rl Sendo: PU = capacidade de carga total RP = resistência de ponta Rl = resistência lateral Sendo: R = capacidade de carga admissível 2 = coeficiente de segurança
  • 29.
    Cálculo da resistênciade ponta - RP ApRpRp ×= ou Aprp × 1F Npk rp × = Np = SPT da camada de apoio da estaca k = coef. do solo (tabela) F1 = coeficiente do tipo de estaca (tabela) Ap = Área da ponta da estaca. Cálculo da resistência lateral - Rl rllURl ×Δ×Σ= 2F Nlk rl ×× = α α = coeficiente do solo (tabela) F2 = coeficiente do tipo de estaca (tabela) Nl = SPT da camada (Δl) U = perímetro da estaca Tabela n°1 Coeficiente F1 e F2 Tipo da estaca F1 F2 FRANKI 2,50 5,0 METÁLICA 1,75 3,5 PRÉ-MOLDADA DE CONCRETO 1,75 3,5 Tabela n°2 Coeficiente K E α ____________________________________________________________________________________ FUNDAÇÕES - Professor Douglas Constancio – Engenheiro Lucas A. Constancio 28 TIPO DE SOLO K (MN/m2 ) α (%) AREIA 1,00 1,4 AREIA SILTOSA 0,80 2,0 AREIA SILTO-ARGILOSA 0,70 2,4
  • 30.
    AREIA ARGILOSA 0,603,0 AREIA ARGILO-SILTOSA 0,30 2,0 SILTE 0,40 3,0 SILTE ARENOSO 0,55 2,2 SILTE ARENO-ARGILOSO 0,45 2,8 SILTE ARGILOSO 0,23 3,4 SILTE ARGILO-ARENOSO 0,25 3,0 ARGILA 0,20 6,0 ARGILA ARENOSA 0,35 2,4 ARGILA ARENO SILTOSA 0,30 2,8 ARGILA SILTOSA 0,22 4,0 ARGILA SILTO-ARENOSA 0,33 3,0 X – DIMENSIONAMENTO DAS ESTACAS 1. Pilar isolado eP P n ×= 10,1 ONDE: n = numero de estacas P = carga do pilar eP = carga de trabalho da estaca 1,10 = coeficiente onde leva em conta o peso próprio da estaca 2. Pilar de divisa cm b ae 5,2 2 0 −−= ONDE: bo = menor dimensão do pilar el l PR − ×= 11 eP R n 1 1 10,1 ×= 11 PRP −=Δ onde: 2 22 P PR Δ −= ____________________________________________________________________________________ FUNDAÇÕES - Professor Douglas Constancio – Engenheiro Lucas A. Constancio 29 eP R n 2 2 10,1 ×=
  • 31.
    OBSERVAÇÕES: a- Devido aoformato e as dimensões dos equipamentos de cravação das estacas, deve-se respeitar uma distância mínima do centro da estaca a divisa a. Onde a é característica do fabricante (tabelado). b- Até um numero de 04 estacas na divisa, podem ser alinhadas, minimizando o valor da excentricidade. c- Não podemos utilizar ∅ diferentes de estacas em um mesmo bloco. ____________________________________________________________________________________ FUNDAÇÕES - Professor Douglas Constancio – Engenheiro Lucas A. Constancio 30 S a c S P1 P2 P2 P1 l R1 R2
  • 32.
    3- Associação depilares próximos Quando temos a necessidade da associação de dois ou mais pilares num mesmo bloco deve- se promover a coincidência do ponto de aplicação da resultante das cargas com o centro de gravidade do bloco. l C.G. x 21 2 PP lP X + × = ____________________________________________________________________________________ FUNDAÇÕES - Professor Douglas Constancio – Engenheiro Lucas A. Constancio 31 eP PP n 21 10,1 + ×=
  • 33.
    Exercícios de cálculode capacidade de carga de estacas Exercício n°1 Dado o perfil de sondagem abaixo: Pede-se: calcular a capacidade de carga para uma estaca tipo Strauss com um comprimento nominal de 7,00m; Diâmetro = 38cm, utilizando o método de DECOURT-QUARESMA. PROF. (m) SPT DESCRIÇAO DO MATERIAL 1 3 2 4 Areia fina pouco siltosa, fofa amarela clara 2,00 3 8 4 10 5 12 6 13 7 18 Areia fina siltosa, Mediamente compacta, Vermelha clara. 7,00 8 25 9 28 10 32 11 43 12 I.P. Silte argiloso compacto, Amarelo escuro. 12,00 RpRlPU += ApqpRp ×= Resistência de ponta pNkqp ×= 6,18 3 251318 = ++ =pN 2 22 113,0 4 38,0 4 m d Ap = × = × = ππ 74406,18400 =×=qp Tabela para areia kNApqpRp 72,840113,07440 =×=×= SlqlRl ×= Resistência por atrito lateral ⎟⎟ ⎠ ⎞ ⎜⎜ ⎝ ⎛ +×= 1 3 10 lN ql 4,7 5 1210843 = ++++ =lN 2 /6,341 3 4,7 10 mkNql =⎟ ⎠ ⎞ ⎜ ⎝ ⎛ +×= / m 2 96,5519,014,322 mHRSl =×××=×××= π (Obs.: l - 2,0m = 5,0 m) ____________________________________________________________________________________ FUNDAÇÕES - Professor Douglas Constancio – Engenheiro Lucas A. Constancio 32 Rp Rl
  • 34.
    kNSlqlRl 20,20696,56,34 =×=×= RpRlPU+= 0,43,1 RpRl UP += kNUP 80,368 0,4 72,840 3,1 20,206 =+= Ou 36,88tf. Exercício nº 2 Calcular a capacidade de carga da estaca; conforme características abaixo como mostra perfil de sondagem. PROF. (m) SPT Descrição do material 0,00 1,00 5 2,00 7 Argila arenosa 2,00 3,00 8 4,00 12 Areia siltosa 4,00 5,00 22 6,00 25 7,00 40 Silte arenoso 7,00 Limite da sondagem Dados: Estaca Pré-moldada de concreto ∅ = 26cm = 0,26m l = 6,0metros Ap= 531cm2 = 0,05m2 = área U = 82cm = 0,82m = perímetro RlRpPU += Rp = Resistência de ponta AprpRp ×= 1F Npk rp × = 22 /785/85,7 75,1 2555,0 mtfmMNrp == × = tRp 25,3905,0785 =×= ____________________________________________________________________________________ FUNDAÇÕES - Professor Douglas Constancio – Engenheiro Lucas A. Constancio 33 Nota: Utilizar o método de cálculo de Aoki - Velloso K= tabela n°2 (silte arenoso) = 0,55 Np= 25 golpes F1= tabela n°1 (estaca pré-moldada de concreto) = 1,75
  • 35.
    Rl = Resistêncialateral rllURl ×Δ×Σ= 2F Nlk rl ×× = α ( MN/m2 = 100 tf/m2 ) l comprimento α % tabela 02 K(MN/m2 ) Tabela 02 Nl SPT F2 Tabela1 rl 1,00 2,4 0,35 5 3,5 1,20 2,00 2,4 0,35 7 3,5 1,68 3,00 2,0 0,80 8 3,5 3,66 4,00 2,0 0,80 12 3,5 5,48 5,00 2,2 0,55 22 3,5 7,60 6,00 2,2 0,55 25 3,5 8,64 - - - - - Σ = 28,26tf/m2 tfRl 17,2382,026,28 =×= RlRpPU += tfPU 42,6217,2325,39 =+= tf PU R 2,31 2 42,62 2 === Exercício n°3 Dado o perfil de sondagem abaixo: Prof (m) SPT Descrição do material 1 2 2 2 3 3 Argila silto arenosa mole, vermelha clara. 3,00 4 5 5 8 6 9 7 12 8 19 9 23 Silte arenoso pouco compacto a compacto, amarelo claro. N.A.=7,00 9,00 10 25 11 41 12 48 13 54 14 61 15 I.P. Areia fina argilosa muito compacta, variegada vermelha clara/escura. 15,00 ____________________________________________________________________________________ FUNDAÇÕES - Professor Douglas Constancio – Engenheiro Lucas A. Constancio 34
  • 36.
    Pede-se: Calcular a capacidadede carga para uma estaca do tipo Franki com um comprimento nominal de 10m e diâmetro de 0,42m, utilizando o método de DECOURT- QUARESMA e o método de AOKI - VELLOSO. U = 123 cm; A = 1385 cm2 Exercício de dimensionamento por estacas: Exercício n°01 Dimensionar o pilar isolado abaixo, utilizando estacas pré-moldadas de concreto. Dados: ∅ = 50 cm Pe = PU: carga de trabalho = 90 tf Definir seu bloco de capeamento. 79,0 90 6510,110,1 = × = × = eP P n ; 1 estaca S= 2,5 x ∅ = 2,5 x 0,50 = 1,25m Exercício n°02 Dimensionar o pilar isolado abaixo utilizando estaca tipo pré-moldada de concreto ∅ = 30 cm Pe = PU = 40 tf ____________________________________________________________________________________ FUNDAÇÕES - Professor Douglas Constancio – Engenheiro Lucas A. Constancio 35 P = 65 tf 25 25 1,10S = 1,40 m 1,10S = 1,40 m S=1,25m 1,10 x 1,25 = 1,38 ∴1,40m 40 60 P=200 tf
  • 37.
    65,5 40 20010,110,1 ∴= × = × = eP P n estacas S =2,5 x ∅ = 2,5 x 0,30 = 0,75 m mcmc 30,015 2 30 15 2 =+=+= φ Exercício n°03 Dimensionar o esquema abaixo, utilizando: Estacas do tipo Pré-moldada de concreto ∅ = 35 cm; PU= 55 tf Dimensionamento do P1 025,0 2 −−= bo ae a = 0,40m (tabela) me 25,0025,0 2 25,0 40,0 =−−= ____________________________________________________________________________________ FUNDAÇÕES - Professor Douglas Constancio – Engenheiro Lucas A. Constancio 36 S C S S 2,10m1,35m V.A. 4,00 DIVISA .25 0,025m .25 1,90 1,00 P2=200 tfP1=150 tf
  • 38.
    tP el l R 9,15950,1 25,04 4 11 =× − =× − = 419,3 55 9,15910,110,1 ∴= × = × = eP P nestacas S= 2,5 x ∅ = 2,5 x 0,35 = 0,875m mcmcmc 325,05,3215 2 35 15 2 ==+=+= φ Dimensionamento de P2 2 22 P PR Δ −= 1509,15911 −=−=Δ PRP tfR 5,195 2 1509,159 2002 = − −= 491,3 55 5,19510,110,1 ∴= × = × = eP P n estacas ____________________________________________________________________________________ FUNDAÇÕES - Professor Douglas Constancio – Engenheiro Lucas A. Constancio 37 3,30 S S S a C 0,75m C S 1,55 1,55
  • 39.
  • 40.
    XI – COMPORTAMENTODE GRUPO DE ESTACAS ____________________________________________________________________________________ FUNDAÇÕES - Professor Douglas Constancio – Engenheiro Lucas A. Constancio 39
  • 41.
    Difere do comportamentode um estaca isolada, porque no grupo de estacas é maior o recalque do que numa estaca isolada, devido ao efeito do bulbo de pressões das várias estacas, resultando um bloco de pressões de dimensões maiores. Inclusive a capacidade de suporte de um grupo de estacas é menor do que a soma das capacidades de cargas das estacas consideradas isoladamente. Segundo a regra de Feld: Consiste em descontar 1/16 da eficiência de cada estaca, para cada estaca vizinha a ela. O método de Feld não se refere a um grupo específica de estacas. Obs.: O método de Feld não leva em consideração a distância entre as estacas, e pode ser equacionado da seguinte forma: ∑ ∑ ⋅ = +++ ⋅++⋅+⋅ = m i m ii m mm n en nnn enenen e 1 1 21 2211 ... ... Bloco com 02 estacas: Bloco com 03 estacas: a-) b-) Bloco com 4 estacas: ____________________________________________________________________________________ FUNDAÇÕES - Professor Douglas Constancio – Engenheiro Lucas A. Constancio 40 e = 93,75 % e = 91,67 % e = 87,50 %
  • 42.
    Bloco com 05estacas: Bloco com 06 estacas: Bloco com 07 estacas: Onde e = Eficiência Exemplo: ____________________________________________________________________________________ FUNDAÇÕES - Professor Douglas Constancio – Engenheiro Lucas A. Constancio 41 e = 81,25 % e = 80,00 % e = 77,00 % e = 78,50 %
  • 43.
    Determinar a eficiênciade um bloco de seis estacas, segundo o Método de Feld: Bloco com 06 estacas: Cálculos: 1a condição: 04 estacas com 03 estacas vizinhas; logo: ( ) %82 16 13 16 3 16 16 4 ≈=−⇒ vizinhas estacas 2a condição: 02 estacas com 05 estacas vizinhas; logo: ( ) %69 16 11 16 5 16 16 2 ≈=−⇒ vizinhas estacas Portanto: %77 24 %692%824 ... ... 1 1 21 2211 = + ⋅+⋅ = ⋅ = +++ ⋅++⋅+⋅ = ∑ ∑ m i m ii m mm total n en nnn enenen e ____________________________________________________________________________________ FUNDAÇÕES - Professor Douglas Constancio – Engenheiro Lucas A. Constancio 42 e = ? e = ? e = ?
  • 44.
    Anexos: Projeto Estacas 01 ProjetoEstacas 02 ____________________________________________________________________________________ FUNDAÇÕES - Professor Douglas Constancio – Engenheiro Lucas A. Constancio 43