DESENHO DE ARQUITETURA
CORTES
CORTE TRANSVERSAL
CORTES são
representações de
vistas ortográficas
seccionais do tipo
“corte”, obtidas
quando passamos por
uma construção um
plano de corte e
projeção VERTICAL,
normalmente paralelo
às paredes, e
retiramos a parte
frontal, mais um
conjunto de
informações escritas
que o
complementam.
CORTE LONGITUDINAL
Os CORTES são
elaborados para o
esclarecimento de
detalhes internos de
elementos que se
desenvolvem em altura,
e que, por
conseqüência, não são
devidamente
esclarecidos em planta
baixa.
Normalmente se faz no
mínimo dois cortes, um
transversal e outro
longitudinal ao objeto
cortado, para melhor
entendimento
CORTES
A orientação dos
CORTES é feita na
direção dos
extremos mais
significantes Do
espaço cortado.
O sentido de
visualização dos
cortes deve ser
indicado em planta,
bem como a sua
localização.
CORTES
A orientação dos
CORTES é feita na
direção dos
extremos mais
significantes Do
espaço cortado.
O sentido de
visualização dos
cortes deve ser
indicado em planta,
bem como a sua
localização.
CORTES
A orientação dos
CORTES é feita na
direção dos
extremos mais
significantes Do
espaço cortado.
O sentido de
visualização dos
cortes deve ser
indicado em planta,
bem como a sua
localização.
CORTES
A orientação dos
CORTES é feita na
direção dos
extremos mais
significantes Do
espaço cortado.
O sentido de
visualização dos
cortes deve ser
indicado em planta,
bem como a sua
localização.
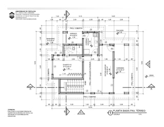
B
01
21.20 M²
TERRAÇO
A
01
B
01
BANHO
5.70 M²
SALA
13.75 M²
01
A
CORTES
EXEMPLO:
CORTESCORTE AA:
CORTESCORTE AA:
CORTESCORTE AA:
00
+0,35
+0,50 +0,48
7010
6055
45
265
55
155
220
210
210
CORTESCORTE AA:
00
+0,35
+0,50 +0,48
2107010
21055
22045
265
1556055
CORTE AA:
CORTES
CORTE BB:
CORTES
00
+0,35
+0,20
+0,50 +0,50
2255510
280
21550
265
265
9010075
3020035
00
+0,35
+0,50 +0,48
2107010
21055
22045
265
1556055
00
+0,35
+0,20
+0,50 +0,50
2255510
280
21550
265
265
9010075
3020035
CORTES
00
+0,30
-0,15
INDICAÇÃO DE NÍVEL EM CORTES:
CORTES
CORTES
EXEMPLO:
CORTES
EXEMPLO:
CORTES
EXEMPLO:
CORTES
EXEMPLO:
CORTES
EXEMPLO:
CORTES
EXEMPLO:
CORTES
EXEMPLO:
CORTES
EXEMPLO:
CORTES
EXEMPLO:
CORTES
EXEMPLO:
CORTES
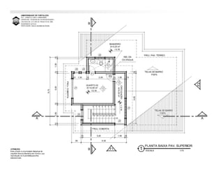
INDICAÇÃO DO CORTE EM PLANTA BAIXA:
TERRAÇO
21.20 M²
5.70 M²
BANHO
13.75 M²
SALA
A
01
A
01
CORTES
CORTES
1. Colocar o papel manteiga sobre a planta, observando o sentido do
corte já marcado na planta baixa;
2. Desenhar a linha do terreno;
3. Marcar a cota do piso dos ambientes “cortados” e traçar;
4. Marcar o pé direito e traçar
5. Desenhar as paredes externas (usar o traçado da planta baixa);
6. Desenhar o forro, quando houver;
7. Desenhar a cobertura.
8. Desenhar as paredes internas, cortadas pelo plano;
9. Marcar as portas e janelas seccionadas pelo plano de corte;
10. Desenhar os elementos que estão em vista após o plano de corte. Ex.:
janela, porta, parede baixa, escada....
ETAPAS PARA O DESENHO DO CORTE:
CORTES
11. Denominar os ambientes em corte;
12. Colocar a indicação de nível;
13. Colocar linhas de cota e cotar o desenho.
ETAPAS PARA O DESENHO DO CORTE:
ATENÇÃO!!!!!
No corte as COTAS são somente VERTICAIS.
As portas e janelas aparecem SEMPRE
FECHADAS.
Reforçar os traços a grafite nos elementos em
corte.
CORTES
CORTES
CORTES
CORTES
CORTES
CORTES
VIGA
BALDRAME
BLOCOS DE
CONCRETO
VIGA
LAJE
FORRO
ELEMENTOS DO CORTE:
PORTA VISTA PORTA CORTE
JANELA VISTA JANELA CORTE
CORTES
ELEMENTOS DO CORTE:
CORTES
EXEMPLO:
CORTES
CORTES
CORTES
Desenho arquitetônico cortes
Desenho arquitetônico cortes

Desenho arquitetônico cortes