DESENHO DE
ARQUITETURA
CORTE
S
CORTE TRANSVERSAL
CORTES são
representações de
vistas ortográficas
seccionais do tipo
“corte”, obtidas quando
passamos por uma
construção um plano de
corte e projeção
VERTICAL,
normalmente paralelo às
paredes, e retiramos a
parte frontal, mais um
conjunto de
informações escritas
que o complementam.
CORTE LONGITUDINAL
Os CORTES são
elaborados para o
esclarecimento de
detalhes internos de
elementos que se
desenvolvem em altura,
e que, por
conseqüência, não são
devidamente
esclarecidos em planta
baixa.
Normalmente se faz no
mínimo dois cortes,
um transversal e
outro longitudinal ao
objeto
cortado, para melhor
entendimento
CORTES
A orientação dos
CORTES é feita na
direção dos extremos
mais significantes Do
espaço cortado.
O sentido de
visualização dos
cortes deve ser
indicado em planta,
bem como a sua
localização.
CORTES
A orientação dos
CORTES é feita na
direção dos extremos
mais significantes Do
espaço cortado.
O sentido de
visualização dos
cortes deve ser
indicado em planta,
bem como a sua
localização.
CORTES
A orientação dos
CORTES é feita na
direção dos
extremos mais
significantes Do
espaço cortado.
O sentido de
visualização dos
cortes deve ser
indicado em planta,
bem como a sua
localização.
CORTES
A orientação dos
CORTES é feita na
direção dos
extremos mais
significantes Do
espaço cortado.
O sentido de
visualização dos
cortes deve ser
indicado em planta,
bem como a sua
localização.
CORTES
EXEMPLO:
CORTES
CORTE
AA:
CORTES
CORTE
AA:
CORTES
CORTE AA:
CORTES
CORTE
AA:
CORTE
AA:
CORTES
CORTE
BB:
CORTES
CORTES
+0,30
00
CORTE
S
INDICAÇÃO DE NÍVEL EM CORTES:
EXEMPLO:
CORTE
S
CORTE
S
EXEMPLO:
CORTE
S
EXEMPLO:
CORTE
S
EXEMPLO:
CORTE
S
EXEMPLO:
CORTE
S
EXEMPLO:
CORTE
S
EXEMPLO:
CORTE
S
EXEMPLO:
CORTE
S
EXEMPLO:
CORTE
S
EXEMPLO:
CORTES
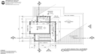
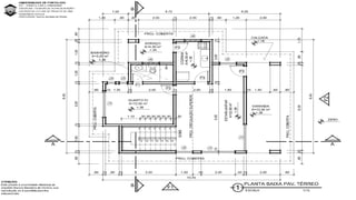
INDICAÇÃO DO CORTE EM PLANTA
BAIXA:
CORTES
CORTES
ETAPAS PARA O DESENHO DO CORTE:
1. Colocar o papel manteiga sobre a planta, observando o sentido do
corte já marcado na planta baixa;
2. Desenhar a linha do terreno;
3. Marcar a cota do piso dos ambientes “cortados” e traçar;
4. Marcar o pé direito e traçar
5. Desenhar as paredes externas (usar o traçado da planta baixa);
6. Desenhar o forro, quando houver;
7. Desenhar a cobertura.
8. Desenhar as paredes internas, cortadas pelo plano;
9. Marcar as portas e janelas seccionadas pelo plano de corte;
10. Desenhar os elementos que estão em vista após o plano de corte.
Ex.: janela, porta, parede baixa, escada....
CORTES
ETAPAS PARA O DESENHO DO CORTE:
11. Denominar os ambientes em corte;
12. Colocar a indicação de nível;
13. Colocar linhas de cota e cotar o desenho.
ATENÇÃO!!!!!
No corte as COTAS são somente VERTICAIS. As portas e janelas
aparecem SEMPRE FECHADAS. Reforçar os traços a grafite nos
elementos em corte.
CORTE
S
CORTES
CORTES
CORTES
CORTES
CORTES
ELEMENTOS DO
CORTE:
VIGA
BALDRAME
BLOCOS DE
CONCRETO
VIGA
LAJE
FORRO
CORTES
ELEMENTOS DO
CORTE:
CORTE
S
EXEMPLO:
CORTES
CORTES
CORTES
Aula 06 linhas e cortes como orientação .pptx
Aula 06 linhas e cortes como orientação .pptx

Aula 06 linhas e cortes como orientação .pptx