114
MÁQUINAS HIDRÁULICAS
Máquinas Hidráulicas são máquinas que trabalham fornecendo, retirando ou
modificando a energia do líquido em escoamento.
Classificação
As máquinas hidráulicas podem ser classificadas em:
• Máquinas operatrizes - introduzem no líquido em escoamento a energia
externa, ou seja, transformam energia mecânica fornecida por uma fonte
(um motor elétrico, por exemplo) em energia hidráulica sob a forma de
pressão e velocidade (exemplo: bombas hidráulicas);
• Máquinas motrizes - transformam energia do líquido e a transferem para o
exterior, isto é, transformam energia hidráulica em outra forma de energia
(exemplos: turbinas, motores hidráulicos, rodas d’água);
• Mistas - máquinas que modificam o estado da energia que o líquido possui
(exemplos: os ejetores e carneiros hidráulicos).
Carneiro hidráulico (equipamento patenteado (1797)
pelo francês Joseph Michel Montgolfier)
115
BOMBAS HIDRÁULICAS E INSTALAÇÕES DE RECALQUE
Definição
Bombas são máquinas operatrizes hidráulicas que fornecem energia ao líquido
com a finalidade de transportá-lo de um ponto a outro. Normalmente recebem
energia mecânica e a transformam em energia hidráulica.
Classificação
As bombas podem ser classificadas em duas categorias, a saber:
• Turbo-Bombas, Hidrodinâmicas ou Rotodinâmicas - são máquinas nas
quais a movimentação do líquido é desenvolvida por forças que se
desenvolvem na massa líquida em conseqüência da rotação de uma peça
interna (ou conjunto dessas peças) dotada de pás ou aletas chamada de
roto;
• Volumétricas ou de Deslocamento Positivo - são aquelas em que a
movimentação do líquido é causada diretamente pela movimentação de um
dispositivo mecânico da bomba, que induz ao líquido um movimento na
direção do deslocamento do citado dispositivo, em quantidades
intermitentes, de acordo com a capacidade de armazenamento da bomba,
promovendo enchimentos e esvaziamentos sucessivos, provocando,
assim, o deslocamento do líquido no sentido previsto.
São exemplos de bombas rotodinâmicas as conhecidíssimas bombas centrífugas
e de bombas volumétricas as de êmbolo ou alternativas e as rotativas.
116
Esquemas de bombas volumétricas
Bombas Centrífugas
Bombas Centrífugas são bombas hidráulicas que têm como princípio de
funcionamento a força centrífuga através de palhetas e impulsores que giram no
interior de uma carcaça estanque, jogando líquido do centro para a periferia do
conjunto girante.
Corte esquemático de uma bomba centrífuga típica
117
O princípio fundamental da bomba centrífuga foi demonstrado por Demour em
1730 em forma de dois tubos retos em forma de Tê; o qual é posto em rotação:
A rotação do componente horizontal ao Tê gera uma força
centrífuga, que é capaz de ultrapassar o peso do líquido.
A teoria das bombas centrífugas se baseia no princípio da
conservação da quantidade de momento angular.
Classificação
• Quanto à direção do escoamento do líquido no interior da bomba:
o radial ou centrífuga pura, quando o movimento do líquido é na
direção normal ao eixo da bomba (empregadas para pequenas e
médias descargas e para qualquer altura manométrica, porém caem
de rendimento para grandes vazões e pequenas alturas além de
serem de grandes dimensões nestas condições);
o diagonal ou de fluxo misto, quando o movimento do líquido é na
direção inclinada em relação ao eixo da bomba (empregadas em
grandes vazões e pequenas e médias alturas, estruturalmente
caracterizam-se por serem bombas de fabricação muito complexa);
o axial ou helicoidais, quando o escoamento desenvolve-se de forma
paralela ao eixo (especificadas para grandes vazões - dezenas de
m3
/s - e médias alturas - até 40 m);
118
• Quanto à estrutura do rotor:
o aberto (para bombeamentos de águas residuárias ou bruta de má
qualidade);
o semi-aberto ou semi-fechado (para recalques de água bruta
sedimentada);
o fechado (para água tratada ou potável) .
Tipos de rotores
• Quanto ao número de rotores:
o estágio único;
o múltiplos estágios (este recurso reduz as dimensões e melhora o
rendimento, sendo empregadas para médias e grandes alturas
manométricas como, por exemplo, na alimentação de caldeiras e na
captação em poços profundos de águas e de petróleo, podendo
trabalhar até com pressões superiores a 200 kg/cm2
, de acordo com
a quantidade de estágios da bomba.
119
VELOCIDADE ESPECÍFICA (ns)
É calculada pela fórmula:
ns = n Q
Hm³/
Onde: ns = velocidade específica, rpm
n = rotação, rpm
Q = vazão, m³/s
Hm = altura manométrica total, m
Fisicamente, a velocidade específica ns de uma bomba, representa a
rotação que uma bomba semelhante deve ter para bombear uma vazão de 1m³/s,
contra uma altura total de 1m.
Para uma mesma bomba, ns não varia com a rotação.
O valor de ns calculado pela fórmula acima é independente do
líquido bombeado.
Os rotores destinados a grandes alturas manométricos têm geralmente, uma
baixa velocidade específica. Para pequenas alturas geralmente ns é alto.
120
A potência fornecida pela bomba ao sistema hidráulico é dada por:
Psaída = Q Hsaída bomba
Onde: Hsaída bomba = V² + p + z é a carga total adicionada ao
2g
líquido na saída da bomba.
A eficiência da bomba é dada por:
bomba = Psaída bomba
Pentrada bomba
Uma bomba é geralmente alimentada por um motor. A eficiência de
um motor é dada por:
motor = Psaída motor
Pentrada motor
Onde: Psaída motor = Pentrada bomba
Exemplo 13:
Uma bomba centrífuga impulsiona uma vazão de 2,5m³/s e adiciona
uma carga de 20m ao sistema, se a bomba opera com 85% de eficiência,
determine a potência na entrada da bomba:
Pentrada bomba = Psaída bomba = Q H = 400300 Watts
bomba 0,85 0,85
= 576823 W = 784 CV
121
O conjunto constituído pelas canalizações e pelos meios mecânicos de elevação
denomina-se sistema de recalque: suas partes principais são:
- Tubulação de sucção
- Conjunto moto-bomba
- Tubulação de recalque
Fig. 1
A altura de sucção (Hs) corresponde à distância na vertical do nível
d’água no reservatório de onde se está bombeando até o eixo da bomba.
Hs
Hr
HG
Hm
hr
Linha piezométrica
Linha de carga
hs
Linha piezométrica
Linha de carga
122
Dependendo da posição do eixo da bomba em relação ao nível
d’água do reservatório, Hs pode ser positiva:
Ou negativa:
A altura de recalque (Hr) é a distância vertical do eixo da bomba ao
ponto de descarga do recalque (se o recalque for afogado, tomamos como
referência o nível d’água do reservatório superior).
Escorvamento de uma bomba: antes de por em funcionamento qualquer bomba,
deve-se encher a canalização de sucção com o líquido a ser bombeado. As peças
dentro da bomba dependem da lubrificação que lhes é fornecida pelo líquido a ser
bombeado. A operação de substituição do ar por líquido é denominada
escorvamento.
Uma bomba é denominada afogada ou submersa, quando é
instalada com eixo abaixo do nível d’água do reservatório (altura de sucção
negativa). Neste caso ela fica automaticamente escorvada. Quando não é o caso,
deve-se usar mecanismos que induzam ao escorvamento tais como válvulas de
pé, ejetores e bombas de vácuo.
Moto
bomba HG
Hr
Hs
HG
Hr
-Hs
123
A altura geométrica (HG), é dada por:
HG = Hr + Hs
Em operação, verificam-se perdas de carga distribuídas e
localizadas nas tubulações de sucção e recalque. (ver figura 1).
A altura manométrica é dada por:
Hm = HG + hs + hr
Somatório das perdas de carga localizadas e
distribuídas ao longa da canalização.
ou Hm = HG + hf + hL
A potência de um conjunto moto-bomba é dada por:
P = Q Hm
75
onde P = potência em C.V. ( o qual é praticamente igual a H.P).
= peso específico do líquido em Kgf/m³.
Q = vazão a ser bombeada (em m³/s).
= rendimento do conjunto moto-bomba.
= motor x bomba (ver tabela 5)
OBS: as potências dos motores comerciais normalmente fabricados
no Brasil. (ver tabela 5).
A fórmula acima nos mostra que o problema do dimensionamento de
um sistema de recalque (determinação do diâmetro e da potência da bomba) é
um problema hidraulicamente indeterminado.
124
TABELA 5
3- Diâmetro comerciais disponíveis para adutoras:
Diâmetro (mm) 50mm 75mm 100mm 150mm 200mm ...+50mm
Diâmetro (pol.) 2” 3” 4” 6” 8”
Os motores elétricos nacionais são normalmente fabricados com as
seguintes potências:
(CV) HP: ¼ - 1/3 – ½ - ¾ - 1 – 1 ½ – 2 – 3 – 5 – 7 ½
- 10 – 12,5 – 15 – 20 – 25 – 30 – 35 – 40 –45 – 50
- 60 – 75 – 100 – 125 – 150 –175 - 200 e 250.
OBS: para transformar de Kw para CV multiplique o valor de P (em Kw) por
1,36.
Rendimento de motores elétricos ( de um determinado fabricante)
HP ½ ¾ 1 1 ½ 2 3 5 10 20 30 50 100
m 64% 67% 72% 73% 75% 77% 81% 84% 86% 87% 88% 90%
Rendimento de bombas centrífugas ( de um determinado fabricante)
Q1/seg 5 7,5 10 15 20 25 30 40 50 100 200
B 52% 61% 66% 68% 71% 75% 80% 84% 85% 87% 88%
Usar somente quando não houver um catálogo das bombas
disponíveis.
Folga de Segurança para determinação da Potência do Conjunto Moto-Bomba:
P (HP) Folga (%)
2 50
5 30
10 20
20 15
> 20 10
125
Visto que a potência é função de Hm o qual por sua vez é função do diâmetro.
De fato, para se reduzir Hm, através da redução das perdas de
carga, teremos que usar tubos com diâmetros relativamente grandes, implicando
em custos elevados da tubulação e menores gastos com energia elétrica.
Por outro lado, ao se diminuir os gastos com a tubulação, o custo
com a energia aumenta:
Existe um diâmetro ótimo para o qual o custo das instalações é
mínimo.
O custo do conjunto elevatório pode ser expresso por:
C1 = Q Hm c1
75
Onde c1 é o custo médio por unidade de potência (cavalo-vapor)
incluindo custo de energia.
O custo das tubulações pode ser dado por:
C2 = c2 D L
Onde c2 é o custo médio por unidade de diâmetro por unidade de
comprimento.
A altura monométrica é dada por:
Custo
Custo
mínimo
Diâmetro
ótimo
D
Custo de
energia
Custo de
tubulação
126
Hm = HG + hf = HG + KQ² 1
Mas K = fL = 8fL = K’L
2gDA² ²gD D
Onde K’ = 8f
²g
Portanto, 1 pode ser escrita como:
Hm = HG + K’Q²L
D
Portanto, o custo total da instalação é dado por:
C = C1 + C2
C = Q c1 HG + K’Q²L + c2 DL
75 D
Para que esse custo seja mínimo:
dC = 0
dD
dC = Q c1 K’Q²L - 5 + c2 L = 0
dD 75 D
De onde se pode tirar o valor de D:
D = K’ c1 Q
15 c2
ou D = K* Q 2
que é conhecida como fórmula de Bresse. Onde Q é dado em m³/s,
D em m e K* é um coeficiente que depende basicamente da relação entre c1 e c2.
127
No Brasil tem se usado 0,9 < K* < 1,4 e é comum se usar K* = 1,3
nos projetos.
O diâmetro comercial disponível imediatamente superior ao
fornecido pela equação 2 deve ser usado, tomando o cuidado de se certificar se a
velocidade nas tubulações; 0,60 < V < 2,40 m/s.
Os diâmetros comerciais geralmente disponíveis no mercado podem
ser encontrados na tabela 5.
OBS: o diâmetro comercial escolhido para a tubulação de recalque
é o que mais se aproxima (para mais ou menos) do diâmetro dado pela fórmula
de Bresse enquanto que o diâmetro para a sucção deve ser um diâmetro
imediatamente superior ao de recalque.
Para instalações que funcionam apenas algumas horas por dia,
admitem-se velocidades superiores ao intervalo dado e, para estas instalações, a
ABNT (NB-92/66) aconselha:
D = 0,587 n ² Q
Onde n é o número de horas de funcionamento da bomba.
128
Exemplo 10
Um certo conjunto elevatório trabalha nas seguintes condições:
Q = 40 /s
Tubulação de ferro fundido. T = 20ºC
Ds = 300mm (diâmetro da tubulação de Sucção)
Dr = 250mm (diâmetro da tubulação de Recalque)
Hs = 3m Hr = 17m
Ls = 9m Lr = 322m
Peças na sucção: uma válvula de pé com crivo e uma curva de 90º.
Peças no recalque: um registro de gaveta, uma curva de 90º, duas
curvas de 45º e uma válvula de retenção.
a) HG
b) h = hf + hL
c) Hm
d) Potência do conjunto moto-bomba
a) HG = HS + Hr = 20m
b) na sucção
V = 0,566m/s
Re = 169800
f = 0,021
hf = f L V² = 0,010 m
D 2g
KL = (1,75 + 0,75 + 0,40 ) = 2,90
hL = KL V² = 0,047m
2g
Portanto, hs = hf + hL = 0,057m
129
No recalque:
V = 0,815 m/s
Re = 203718
f = 0,021
hf = 0,93m
KL = 3,55
hL = 0,12m
hr = hf + hL = 1,05m
Perda de carga total: 1,11m
(c) Hm = HG + h = 21,11m
(d) P = Q Hm
75
Como nós não temos um catalogo da bomba a ser usada, usaremos
a tabela 5:
Para Q = 40 /s
bomba = 0,84
motor = 0,87
= bomba x motor = 0,73
Assim: P = (1000) (0,04) (21,11)
(75) (0,73)
P = 15,4 CV
O conjunto moto-bomba disponível a ser usado é o de P = 20CV.
130
Exemplo 11
Deseja-se bombear 36m³/hora através de um sistema de recalque
composto de tubos de ferro fundido cujas características são:
Sucção: Ls = 7m, Hs = 3m
Peças: válvula de pé com crivo; curva de 90º
Recalque: Lr = 20m, Hr = 10m
Peças: válvula de retenção curva de 90º
registro de gaveta
saída de canalização
Dimensione as tubulações e o conjunto moto-bomba para tal
sistema. (considere T = 20ºC).
Diâmetro:
Usando a fórmula de Bresse:
Q = 36 m³ = 36 m³/s = 0,01m³/s
hora 3600
D = K* Q = 1,3 0,01 = 0,13m
Portanto escolhemos:
Ds = 150mm e
Dr = 125mm
(ver tabela 5)
a) Potência do motor:
131
b) HG = HS + Hr = 13m
na sucção
V = 0,566m/s
Re = 84883
f = 0,025
hf = 0,019 m
KL = 3,15
hL = 0,047m
No recalque:
V = 0,815 m/s
Re = 101859
f = 0,026
hf = 0,141m
KL = 2,75 + 0,40 + 0,20 + 1,00 = 4,35
hL = 0,147m
Perda de carga total: 0,35m
Portanto: Hm = HG + h = 13,35m
Potência do motor:
= bomba x motor
Usando a tabela 5:
bomba = 0,66 motor = 0,72
= 0,48
Portanto: P = Q Hm = 3,71 CV
75
Usa-se um motor com potência de 5CV.
132
Exercício proposto 8:
Dimensionar as tubulações e determinar a potência do motor de um
sistema de captação de água bruta para uma comunidade de 900 pessoas,
sabendo que T = 20ºC.
Demanda = 250 /hab/dia
Tempo de bombeamento: 6 horas/dia
HG = 20m
Ls = 10m
Lr = 300m
Tubos de PVC
Peças na sucção:
Válvula de pé com crivo curva de 90º
Peças no recalque:
1 curvas de 90º
2 curvas de 45º
válvula de retenção
registro de gaveta, aberto
133
SOLUÇÃO DO EXERCÍCIO PROPOSTO 8
Consumo: 900 x 250 = 225000
dia
Como a bomba é dimensionada para funcionar 6 horas por dia:
Q = 225000 = 0,0104m³
6 x 3600 x 1000 s
Portanto: D = 0,587 n ² Q
D = 0,0938 m
Adota-se, então, um diâmetro de 100mm para recalque e 125mm
para sucção.
Perdas de carga
Recalque:
V = 1,32 m/s
(pvc) = 0,0015mm
Re = 132000
f = 0,017
hf = 4,56m
KL = 2,9
hL = 0,26
Sucção:
V = 0,85 m/s
Re = 105933
f = 0,018
hf = 0,05m
KL = 4,15
hL = 0,15m
134
Perda total: 5,02m
Hm = 25,02m
bomba = (10 /s) = 0,66
motor = 0,72
= 0,48
P = 7,23 CV
Usa-se um motor de P = 10 CV.
135
CAVITAÇÃO
Na interface gás-líquido de um determinado material, há uma
constante troca de moléculas entre as fases líquida e gasosa.
A presença de moléculas na fase gasosa perto da superfície líquida
da origem a chamada pressão de vapor (pv) à medida que a temperatura do
líquido aumenta, mais moléculas saem da fase líquida para a gasosa,
aumentando a pressão de vapor (ver tabela 6).
Quando a temperatura chega a um valor para o qual a pressão de
vapor se iguala à pressão atmosférica, a qual é função da altitude (ver tabela 6), a
ebulição do líquido acontece! Em condutos fechados e em bombas, a água
vaporiza nos pontos onde a pressão atinge valores inferiores à pressão de vapor,
este fenômeno é conhecido como cavitação.
136
TABELA 6
Temperatura
ºC
Pressão de
Vapor, pv (N/m²)
Peso específico,
(N/m³)
Hv = pv/
(m)
0 611 9810 0,06
5 873 9810 0,09
10 1266 9810 0,13
15 1707 9800 0,17
20 2335 9790 0,24
25 3169 9781 0,32
30 4238 9771 0,43
35 5621 9751 0,58
40 7377 9732 0,76
45 9584 9713 0,99
50 12331 9693 1,27
55 15745 9668 1,63
60 19924 9643 2,07
65 25015 9619 2,60
70 31166 9594 3,25
75 38563 9565 4,03
80 47372 9535 4,97
85 57820 9501 6,09
90 70132 9467 7,41
95 84552 9433 8,96
100 101357 9398 10,78
Pressão Atmosférica em função da altitude
Altitude
(m)
Altura de água equivalente à
pressão atmosférica
(m)
0 10,33
300 9,99
600 9,65
900 9,25
1200 8,91
1500 8,57
1800 8,22
2100 7,91
2400 7,60
2700 7,33
137
O aparecimento de pressões iguais ou inferiores à pressão de vapor
da água ( a qual é função da temperatura) pode causar uma das seguintes
conseqüências:
- Se a bolhas formadas em virtude da vaporização da água forem
generalizadas em toda a seção de entrada da bomba, como a
pressão interna nas bolhas (pi) é maior que a pressão fora das
bolhas (pe), (na entrada da bomba) as bolhas tendem a se
expandir até o ponto de cortar o fluxo, cessando o bombeamento.
- Se as bolhas forem localizadas em alguns pontos e não
generalizadas ao ponto de interromper o fluxo, a situação no
rotor, será a seguinte:
Assim, no rotor, pe > pi, neste caso as bolhas tendem a desaparecer
em violentas implosões, os quais geram ondas de choque que causam vibrações
Rotor
pe
pi
Motor
pe < 0
Linha piezométrica
pe
pi
Motor
pe < 0
Linha piezométrica
138
na bomba, ruído desagradável (martelamento) destruição das palhetas e paredes
do rotor e queda do rendimento da bomba.
Para que uma dada bomba funcione sem cavitar, é necessário que a
pressão, na entrada da bomba, seja sempre superior à pressão de vapor para a
temperatura de funcionamento da bomba. Considere a seguinte instalação de
recalque.
Aplicando a equação de Bernoulli entre os pontos 0 e 1
(considerando, neste caso, pressões absolutas).
patm = Hs + p1 + V1² + hs + h*
2g
Onde hs representa a soma das perdas de carga distribuídas e
localizadas na tubulação de sucção.
Motor
patm
Linha de carga
Rotor
Hs
Tubulação de
sucção
hs = ( hf + hL)
1
139
patm é função da altitude do local onde está a bomba e pode ser
obtida através da tabela 6.
h* é a soma das perdas de carga internas do rotor e estão ligadas
à forma e o tipo do rotor.
OBS: para efeito de cálculo, vamos considerar V1 a velocidades do
fluído na tubulação de sucção.
Visando evitar a cavitação no rotor da bomba p1 > pv, ou
p1 = patm - (Hs + V1² + hs + h*) > pv ou
2g
Hs < patm - (pv + V1² + hs + h*) 1
2g
Seria a máxima altura de sucção permissível.
Considerando pv = V1² = hs = h* = 0
2g
Hsmáx = patm, a qual, para o nível mas:
Hsmáx = 10,33m (tabela 6)
No entanto, como existem perdas e pv é sempre maior que zero, na
prática, este valor de Hsmáx se situa em torno de 6m.
A equação 1 pode ser reescrita como:
patm - (Hs + pv + hs) > V1² + h* 2
2g
140
O termo do lado esquerdo da equação 2 é denominado (NPSH)d
(Net Positive Suction Head) ou NPSH disponível e envolve variáveis que
dependem das condições do local de instalação da bomba. O termo do lado
direito da equação 2 é denominado (NPSH)r ou NPSH requerido e depende do
diâmetro da tubulação de sucção e de características geométricas e do tipo de
bomba.
Nós podemos então afirmar que a bomba não cavitará se:
(NPSH)d (NPSH)r
Os fabricantes de bombas geralmente fornecem em seus catálogos
o valor de (NPSH)r como função do diâmetro do rotor (em mm) e da vazão. (ver
exemplo nas Figuras 9 e 10).
141
142
143
Quando se desconhece a variação de (NPSH)r com Q (fornecida pelo
fabricante), o seguinte procedimento alternativo pode ser realizado:
Nós vimos que as causas das perdas h* estão ligadas à forma e a
geometria do rotor. Assim, na ausência de dados de ensaios da bomba, pode-se
estimar h* através da expressão:
h* = . Hm 3
onde é o chamado coeficiente de cavitação da bomba.
Experiências revelaram que:
= 1,2 x 10 ³ ³ ns 4
(fórmula de Stepanoff)
Onde ns, como vimos é a velocidade específica, e é dada por:
ns = n Q½
(Hm)¾
para ns = (rpm) e Hm (m)
n (rpm)
Q (m/³s)
Equação 3 teremos que:
(NSPH)r = Hm + V1² 5
2g
Pode-se, então, através do uso das equações 4 e 5 estimar o valor
de (NPSH)r.
144
Exemplo 13
O (NPSH)r de uma certa bomba instalada a 600m de altitude é 3m.
Se a água estiver a 65ºC e a perda de carga na sucção é de 1,5m, determine a
máxima altura de sucção permitida:
Usando a equação 1
patm - (Hs + pv + hs) > (NPSH)r
Hs < patm - (pv + hs + (NPSH)r) 1
usando a tabela 6
patm (600m) = 9,65m
pv (65ºC) = 2,60m
Assim: Hs < 9,65 - (2,60 + 1,50 + 3,00)
Hs = 2,55m.
Exemplo 14
Para uma determinada bomba:
Q = 700m³/h
Hm = 30m
n = 1,185rpm
145
Se esta bomba localizada ao nível do mar, deve impulsionar água a
85ºC como velocidade de sucção de 4,1m/s, sabendo que as perdas na sucção
foram de 1,354m, determine a máxima altura de sucção:
Usando a equação 1:
Hs < patm - (pv + hs + (NPSH)r)
(NPSH)r = Hm + V1²
2g
= 1,2 x 10 ³ ³ ns
ns = n Q = 1,185 700
3.600 = 40,8rpm
(Hm) (30)
= 1,2 x 10 ³ ³ (40,8) = 0,168
(NPSH)r = Hm + V1² = 5,896m
2g
patm = 10,33m (nível do mar, tabela 6)
pv = 6,08m (85ºC tabela 6)
Assim: Hs < 10,33 - (6,08 + 1,354 + 5,896)
Hs < -3m
Neste caso, a bomba deverá operar afogada de pelo menos 3m.
3 m
1/2
3/4 3/4
146
Exercício proposto 9
A bomba II (tabela 9) impulsiona uma vazão de 50 /s. Determinar a
máxima altura de sucção para esta bomba, sabendo que:
- A bomba está instalada a 900m
- T = 30ºC
- A tubulação de sucção é feita de ferro fundido, com L = 25m, D =
150mm e contém 1 curva de 90º e uma válvula de pé com crivo.
147
SOLUÇÃO DO EXERCÍCIO PROPOSTO 9
Para Q = 0,05m³/s e D = 0,150m V = 2,83m/s.
(ferro fundido) = 0,26mm
Re = VD = 527895
f = 0,023
hs = (Kcurva + Kválvula + curva + fL ) V²
D 2g
hs = 2,76m
(NPSH)r = 3,00m (tabela 10)
Hs < Hatm - Hv - hs + (NPSH)r
Hs < 9,25 - 0,43 - 2,76 - 3,00
Hs < 3,06m
148
Exercício proposto 10
Uma certa bomba está operando com 1400rpm ao nível do mar,
impulsionando uma vazão de 0,42m³/s de água a 40ºC. Se Hm = 85m, o
diâmetro do tubo de sucção é 30 cm e hs = 1m. Determine a máxima altura de
sucção para evitar cavitação na bomba.
149
SOLUÇÃO DO EXERCÍCIO PROPOSTO 10
ns = n Q = 32,4rpm
(Hm)
= 0,0012 (ns) = 0,124
(NPSH)r = Hm + V² = 10,54 + 1,81 = 12,35m
2g
Hs < Hatm - Hv - hs - (NPSH)r
Hs < 10,36 - 0,76 - 1 - 12,35
Hs < -3,75m
Ou seja, a bomba tem que trabalhar afogada de pelo menos 3,75m.
1/2
3/4
4/3
150
CURVA CARACTERÍSTICA DE UMA TUBULAÇÃO
A fórmula usada para cálculo da perda de carga:
hf + hL = fL Q² + KL V²
D 2gA² 2g
Pode ser reescrita na forma:
hf + hL = KQ² 1
Onde K = fL + ( KL)
2gDA² 2gA²
coeficiente geométrico de atrito.
A razão de se escrever a fórmula de Darcy-Weisbach nessa forma é
facilitar a solução de problemas que envolvem redes de conduto (tubos em série e
tubos em paralelo).
OBS: as unidades de K no sistema internacional são s²
m
A curva característica de uma tubulação de recalque é a curva Hm e
Q.
Nós vemos que:
Hm = HG + hf + hL
Usando 1 , teremos:
Hm = HG + KQ²
151
Esta curva, para uma dada tubulação, tem a forma:
Exemplo 14:
Dada a tubulação de recalque abaixo:
Sabendo que:
D1 = 150mm, L1 = 300m
D2 = 100mm, L2 = 300m e que a tubulação é feita de ferro
fundido, determine a curva característica da tubulação
OBS: despreze as perdas de carga localizadas e na tubulação de
sucção.
T = 20ºC
D1
D2
R2
R1
HG = 50m L2
L1
HG
hf + hL
Q
Hm
152
D1 = 150 mm D2 = 100 mm
L1 = 300 m L2 = 300 m
= 0,12 mm = 0,000001 m²/s
Hg = 50 m
Nesse caso:
Hm = HG + hf1 + hf2
hf1 = f1 L1 V1² e hf2 = f2 L2 V2²
D1 2g D2 2g
hf1 = 102 f1V1² e hf2 = 153f2V2²
Re1 = V1D1 = 150000V1
Re2 = V2D2 = 100000V2 = 0,12mm
f1 = 0,25
Log (2,162 x 10 + 1,260 x 10 ) ²
V1
f2 = 0,25
Log (3,243 x 10 + 1,815 x 10 ) ²
V2
153
Q
(m³/h)
V1
(m/s)
V2
(m/s)
f1 f2 hf1
(m)
hf2
(m)
Hm
(m)
0 0,00 0,00 0,0000 0,0000 0,00 0,00 50,00
10 0,16 0,35 0,0268 0,0249 0,07 0,48 50,54
20 0,31 0,71 0,0238 0,0225 0,24 1,72 51,96
30 0,47 1,06 0,0225 0,0215 0,51 3,70 54,21
40 0,63 1,41 0,0218 0,0209 0,88 6,40 57,28
50 0,79 1,77 0,0213 0,0205 1,34 9,83 61,17
60 0,94 2,12 0,0209 0,0203 1,90 13,97 65,87
70 1,10 2,48 0,0207 0,0201 2,55 18,83 71,38
80 1,26 2,83 0,0204 0,0199 3,30 24,41 77,71
90 1,41 3,18 0,0203 0,0198 4,14 30,71 84,85
100 1,57 3,54 0,0201 0,0197 5,08 37,72 92,79
0
10
20
30
40
50
60
70
80
90
100
0 20 40 60 80 100 120
Q(m3/h)
Hm(m)
154
CURVA CARACTERÍSTICA DE UMA BOMBA
As bombas são capazes de trabalhar com variados valores de
vazão, potência absorvida, rotação e rendimento. A curva característica de uma
determinada bomba relaciona os valores de Hm e Q e P e Q para diversos valores
de rotação (n) e o rendimento ( ) e tem a seguinte forma geral:
Variação das curvas características:
1- diâmetro do rotor ( )
Cada diâmetro de rotor corresponde uma curva caracterísitica.
Se o diâmetro for modificado, as curvas características apresentam
as seguintes relações com as características originais:
Q2 = 2
Q1 1
H2 = 2 ²
H1 1
P2 = 2 ³
P1 1
Usando-se as relações acima pode-se alterar o diâmetro do rotor e
assim adaptar a bomba a novas necessidades de vazão e/ou altura
manométrica (esta é a chamada “usinagem” do rotor)
Q
Hm
155
2- Rotação (n)
Uma vez mantidos constantes a forma e o diâmetro do rotor, a
energia transferida do fluído varia com a rotação, de acordo com
as seguintes relações:
Q2 = n2 H2 = n2 ² e
Q1 n1 H1 n1
P2 = n2 ³
P1 n1
No Brasil, os valores de rotação mais comuns são: 3.500 rpm
e 1.750 rpm, sendo também mais raramente encontrados valores de rotação de
1.150 rpm e 885 rpm. Os valores de rotação são determinados pela configuração
interna das partes elétricas do motor e também pelo valor da freqüência elétrica
fornecida pela concessionária de Energia. Deve-se dar preferência a valores
baixos de rotação, assim, preferencialmente deve-se optar pela rotação de 1.750
rpm, pois geralmente bombas com rotores de baixa rotação apresentam menos
problemas de manutenção e menos gasto com energia, comparados à mesma
bomba sujeita a uma rotação maior, entretanto, para valores baixos de potência
(geralmente P < 10 CV’s), não há outra opção a não ser bombas com rotores com
rotação de 3.500 rpm.
3 - Parábolas de Isoeficiência:
Como nós vimos, a curva característica de uma bomba varia com o
diâmetro do rotos e/ou com o número de rotações do rotor. Nós podemos
constituir um gráfico com curvas Hm e para diferentes valores de rotação ou de
diâmetro do rotor. A seguir, são traçadas as chamadas parábolas de Isoeficiência,
as quais são curvas de rendimento constante. Essas parábolas são determinadas
do seguinte modo:
156
Como vimos, para dois valores de rotação do rotor de uma mesma
bomba: :
Q2 = n2 e H2 = n2 ²
Q1 n1 H1 n1
Ou para dois diâmetros diferentes:
Q2 = 2 e H2 = 2 ²
Q1 1 H1 1
Desta forma, em ambos os casos Q1² = Q2² = constante.
H1 H2
Se agora usarmos a fórmula da potência:
H1 = 75P1 1 e Q1 = 75P1 1
Q1 H1
Q1² = P1² (75)² ( 1)² x Q1 = 75P1Q1 1
H1 ( )² (H1)² P175 1 (H1)²
= 75 P2 Q2 2
(H2)²
Portanto:
H2 ² 1 = P2 Q2 2
H1 P1 Q1
Mas, nós vimos que:
H2 = n2 ² = 2 ²
H1 n1 1
P2 = n2 ³ = 2 ³ e
P1 n1 1
157
Q2 ² = n2 2
Q1 n1 1
Assim:
n2 1 = n2 ³ n2 2
n1 n1 n1
ou 1 = 2
Portanto nós provamos que as curvas geradas para Q² = constante
H
tem rendimento igual.
Desta forma, nós podemos traçar as chamadas parábolas de
isoeficiência:
158
BOMBA I
0
10
20
30
40
50
60
0 10 20 30 40 50
Vazão (L/s)
Hm(m)
220
240
260
280
300
20%
30%
40%
40%
43%
43%
BOMBA II
0
10
20
30
40
50
60
0 20 40 60 80
Vazão (L/s)
Hm(m)
220
240
260
280
300
30
40
50
50%
54
54
40
FIGURA 9
n= 1750 rpm
n= 1750 rpm
159
BOMBA III
0
10
20
30
40
50
60
0 40 80 120 160 200
Vazão (L/s)
Hm(m)
220
240
260
280
300
30%
40%
50%
50%
60%
60%
BOMBA IV
0
10
20
30
40
50
60
0 50 100 150 200 250
Vazão (L/s)
Hm(m)
220
240
260
280
300
40%
50%
55%
62%
60%
62%
FIGURA 10
n= 1750 rpm
n= 1750 rpm
160
PONTO DE TRABALHO
Para um determinado sistema de recalque, uma vez que a bomba é
ligada, a vazão aumenta gradativamente, aumentando Hm, até atingir o equilíbrio
no ponto em que as curvas características da bomba e da tubulação se cruzam.
Este ponto é chamado o ponto de trabalho de sistema.
Onde Qt é a vazão de trabalho. A escolha de uma bomba deve ser
baseada no princípio de que o ponto de trabalho deve estar localizado na faixa
em que a bomba tem rendimento máximo, uma vez satisfeitas as exigências de
vazão e altura manométrica.
Hm
Qt
Bomba
Tubulação
161
SELEÇÃO DE UMA BOMBA
Uma vez conhecidas a vazão e a altura manométrica, o próximo
passo é consultar o gráfico de pré-seleção de bombas fornecido pelo fabricante:
Esses gráficos fornecem geralmente um grupo de bombas
adequados para os valores de Q e Hm do sistema de recalque. Eles também
podem conter o tamanho da bomba, a potência do motor e a frequência da
corrente elétrica que alimentará o motor. Um exemplo deste tipo de gráfico de
pré-seleção de bombas está apresentado na figura 11:
Uma vez escolhido um grupo de bombas através do gráfico de pré-
seleção, nós usamos a curva característica especifica de cada uma das bombas
pré-selecionadas para determinar a bomba mais eficiente e o ponto de trabalho
do sistema.
162
Exemplo 16
Uma bomba é usada para impulsionar 70 /s de água entre dois
reservatórios cuja diferença entre a linhas d’água é 20 m. Se os tubos de aço
comercial, cujo comprimento total é igual a 1000m e com 200 mm de diâmetro
forem usados, selecione dentre as 4 bombas das figuras 9 e 10 a bomba mais
apropriada e suas condições de operação. Considere T = 20ºC (despreze as
perdas localizadas).
Solução:
V = Q = 2,23 m/s
A
Re = VD = 4,5 x 10
= (aço comercial) = 0,045 mm
f = 0,016 (fórmula de Swanee & Jain)
hf = f L V² = 20,27 m
D 2g
Portanto, Hm = HG + hf = 40,27 m
163
De acordo com o gráfico de pré-seleção das bombas ( figura 11), tanto a bomba II
como a bomba III podem ser usadas:
Traçaremos então, a curva característica da tubulação para decidirmos que
bomba usaremos.
Para o intervalo de vazões da Bomba II
Q V f hf Hm
(l/s) (m/s) (m) (m)
0 0,00 0,0000 0,00 20,00
10 0,32 0,0207 0,53 20,53
20 0,64 0,0184 1,90 21,90
30 0,95 0,0174 4,05 24,05
40 1,27 0,0168 6,95 26,95
50 1,59 0,0164 10,60 30,60
60 1,91 0,0161 14,99 34,99
70 2,23 0,0159 20,12 40,12
80 2,55 0,0157 25,99 45,99
90 2,86 0,0156 32,59 52,59
164
Para o intervalo de vazões da Bomba III:
Q V f hf Hm
(l/s) (m/s) (m) (m)
0 0,00 0,0000 0,00 20,00
20 0,64 0,0184 1,90 21,90
40 1,27 0,0168 6,95 26,95
60 1,91 0,0161 14,99 34,99
80 2,55 0,0157 25,99 45,99
100 3,18 0,0155 39,93 59,93
120 3,82 0,0153 56,81 76,81
Nós podemos agora traçar a curva característica da tubulação no
mesmo gráfico das curvas da bomba II e III.
BOMBA II
0
10
20
30
40
50
60
0 10 20 30 40 50 60 70 80
Vazão (L/s)
Hm(m)
220
240
260
280
300
TUBULA
ÇÃO
Ponto de
Trabalho
30%
40%
50%
50%
54%
54%
40%
165
BOMBA III
0
10
20
30
40
50
60
0 20 40 60 80 100 120
Vazão (L/s)
Hm(m)
220
240
260
280
300
Tubulação
30%
40%
50%
50%
60%
60%
166
Para a bomba II, as características que mais se aproximam dos
requisitos do projeto são:
= 300 mm
Q = 74 l/s e
Hm = 43 m
= 49%
Nesse caso, P = Q Hm = 86,6 CV
75
De acordo com a disponibilidade de motores nacionais (Tabela 5),
usaremos um motor de 100 CV.
Para a bomba III temos duas alternativas:
1- = 260 mm, nesse caso:
Q = 70 l/s, Hm = 40,3 m e = 53 %.
Nesse caso, P = Q Hm = 71,0 CV
75
De acordo com a disponibilidade de motores nacionais, usaremos
um motor de 80 CV.
2- = 280 mm, nesse caso:
Q = 79 l/s, Hm = 44 m e = 56 %.
Nesse caso, P = Q Hm = 82,8 CV
75
De acordo com a disponibilidade de motores nacionais, usaremos
um motor de 100 CV.
De acordo com os resultados acima, a bomba III funcionando com
um rotor de 280 mm de diâmetro consome menos energia do que a bomba II e
ainda fornece uma margem extra de segurança no que se refere a Q e Hm em
167
relação a bomba III funcionando com um rotor de = 260 mm, portanto,
Selecionamos a bomba escolhida é a III ( 280).
168
Exemplo 17
Dada a seguinte instalação de recalque, cuja tubulação é feita de
ferro fundido, e os diâmetro da sucção e do recalque são de respectivamente 600
mm e 500 mm.
Cujas peças são:
1 válvulas de pé com crivo
2 curva de 90º
3 registros de gaveta, aberto
4 válvula de retenção
Dada a curva característica da bomba a ser instalada:
Q (l/s) 110 300 450 560 660 760
Hm (m) 22 21 20 19 18 17
3
1
19m
5m
1m
12m
20m
23m
2
2
4
3
169
Determine as características do ponto de trabalho desse sistema de
recalque (use BOMBA = 65%).
Solução:
h = hf + hL
h = f L + KL V² = f L + KL Q²
D 2g D 2gA²
Na sucção:
L = 13m D = 0,6 m
KL = 2,5 + 0,40 + 0,20 = 3,1
hs = (13,8 fs + 2,0)Q²
No recalque:
L = 39 m, D = 0,5 m
KL = 2,75 + 0,20 + 0,40 + 1,00 = 4,35
saída
hr = (103,1 fr + 5,8 ) Q²
Portanto:
Hm = HG + hs + hr
Hm = 18 + (13,8 fs + 103,1 fr + 7,8) Q² ( = 0,26 mm).
HG = 18 m
Ds = 600 mm
Ls = 13 m
KL (sucção) = 3,1
Dr = 500 mm
Lr = 39 m
170
KL (recalque) = 4,35
= 0,26 mm
= 10-6
m²/s
Q
l/s
Hm (bomba)
m
Hm (tub.)
m
Vs
m/s
fs Vr
m/s
fr
0 18,0
110 22 18,1 0,39 0,0183 0,56 0,0185
300 21 18,9 1,06 0,0171 1,53 0,0176
450 20 20,0 1,59 0,0169 2,29 0,0174
560 19 21,1 1,98 0,0167 2,85 0,0173
660 18 22,2 2,33 0,0167 3,36 0,0172
760 17 23,6 2,69 0,0166 3,87 0,0172
Nós agora podemos montar a seguinte tabela do gráfico
, nós constatamos que no ponto de trabalho do sistema Q = 452
l/s e Hm = 19,9 m:
Nesse caso:
P = Q Hm = 185 CV
75
0
5
10
15
20
25
0 110 300 450 560 660 760
Vazão (L/s)
Hm(m)
tubulação
Bomba
171
Exercício proposto 11
Uma bomba possui uma curva característica dada pela seguinte
tabela:
H (m) 25,91 24,99 24,08 22,86 21,34 18,90
Q (l/s) 11,33 17,00 22,65 28,32 33,98 39,64
Essa bomba deve recalcar água através de uma tubulação de aço
comercial de 150 mm de diâmetro. Sabendo que HG = 12,2 m e que as perdas
de carga localizadas podem ser desprezadas e que o comprimento da tubulação
é de 430,5 m, calcule as características do ponto de trabalho do sistema.
(considere T = 20ºC).
172
SOLUÇÃO DO EXERCÍCIO PROPOSTO 11
Fazendo a seguinte tabela e gráfico:
HG = 12,2 m
Ds = 150 mm
Ls = 30,5 m
KL (sucção) = 0
Dr = 150 mm
Lr = 400 m
KL (recalque) = 0
= 0,045 mm
= 10-6
m²/s
Q
l/s
Hm (bomba)
m
Hm (tub.)
m
Vs
m/s
fs Vr
m/s
fr
0 12,2
11,33 25,91 13,4 0,64 0,0196 0,64 0,0196
17 24,99 14,7 0,96 0,0185 0,96 0,0185
22,65 24,08 16,5 1,28 0,0179 1,28 0,0179
28,32 22,86 18,8 1,60 0,0174 1,60 0,0174
33,98 21,34 21,5 1,92 0,0171 1,92 0,0171
39,64 18,9 24,6 2,24 0,0169 2,24 0,0169
Nós verificamos que, no ponto de trabalho, Q = 33,80 L/s e Hm = 21,6 m. Neste
caso, usando = 80% (Tabela 5), a potência na entrada da bomba é de:
0
5
10
15
20
25
30
0 5 10 15 20 25 30 35 40 45
Vazão (L/s)
Hm(m)
tubulação
Bomba
173
CV12
75
HQ
P m == .
Exercício proposto 12
Selecione a bomba mais adequada, dentre as disponíveis nas
figuras 9 e 10, a ser usada em um sistema de recalque, no qual Q = 30 l/s, HG =
20 m, L = 600 m e D = 150 mm. Sabendo que o tubo é feito de ferro
galvanizado, determine as características do ponto de trabalho do sistema.
174
SOLUÇÃO DO EXERCÍCIO PROPOSTO 12
D = 150 mm
L= 600 m
= 0,15 mm = 1,31x10
-6
m
2
/s
HG= 20 m
BOMBA I
Q V f hf Hm
(l/s) (m/s) (m) (m)
0 0,00 0,0000 0,00 20,00
5 0,28 0,0258 0,42 20,42
10 0,57 0,0234 1,53 21,53
15 0,85 0,0224 3,29 23,29
20 1,13 0,0218 5,71 25,71
25 1,41 0,0215 8,77 28,77
30 1,70 0,0212 12,48 32,48
35 1,98 0,0210 16,83 36,83
40 2,26 0,0209 21,83 41,83
45 2,55 0,0208 27,48 47,48
BOMBA II
Q V f hf Hm
(l/s) (m/s) (m) (m)
0 0,00 0,0000 0,00 20,00
10 0,57 0,0234 1,53 21,53
20 1,13 0,0218 5,71 25,71
30 1,70 0,0212 12,48 32,48
40 2,26 0,0209 21,83 41,83
50 2,83 0,0207 33,76 53,76
175
Para Q = 30 l/s e Hm = 32,48 m, pela figura 11:
Assim, verificamos que tanto a bomba I quanto a II podem ser usadas.
176
BOMBA I
0
10
20
30
40
50
60
0 5 10 15 20 25 30 35 40 45
Vazão (L/s)
Hm(m)
220
240
260
280
300
TUBULAÇÃO
Ponto de
Trabalho
20%
30%
40%
40%
43%
43%
BOMBA II
0
10
20
30
40
50
60
0 10 20 30 40 50 60 70 80 90
Vazão (L/s)
Hm(m)
220
240
260
280
300
Tubulação
Ponto de
Trabalho
30%
40%
50%
50%
54%
54%
40%
34 m
32 l/s
33 m
39,8 m
177
Ao plotarmos a curva característica da tubulação na Figura 9, nós vemos então
que temos duas alternativas:
Bomba I com = 260 mm, Q = 32 l/s, Hm = 34 m e = 38 %.
P = Q Hm = 38,2 CV == Motor Comercial de 40 CV
75
Bomba II com = 240 mm, Q = 32 l/s, Hm = 33 m e = 51 %.
P = Q Hm = 27,6 CV == Motor Comercial de 30 CV
75
Bomba II com = 260 mm, Q = 37 l/s, Hm = 39,8 m e = 53 %.
P = Q Hm = 37 CV == Motor Comercial de 40 CV
75
Sugere-se a Bomba II com = 260 mm ou = 240 mm
178
Exercício proposto 13
Para um determinado sistema de recalque:
Q = 20 l/s
HG = 40 m
L = 150 m
KL = 70
T = 10 ºC
Tubo feito de aço comercial. Selecione o diâmetro (dentre os
usualmente disponíveis), e a bomba (dentre as disponíveis nas figuras 9 e 10)
mais eficientes, sabendo que o custo total do sistema de recalque é dado por:
C = D + 0,75 P + 18
Onde D é o diâmetro do tubo, em mm, P é a potência da bomba, em
CV ,e C é dado em 1.000 R$.
Compare com o resultado obtido usando a fórmula de Bresse e
comente.
0,5
179
SOLUÇÃO DO EXERCÍCIO PROPOSTO 13
D
(mm)
Hm (tub.)
(m)
V
(m/s)
f P (CV)
p/ 71%
C
(1000 R$)
60 343,3 7,07 0,020 129 122
75 153,0 4,53 0,019 57 70
100 72,4 2,55 0,019 27 48
125 52,5 1,63 0,019 20 44
150 45,8 1,13 0,019 17 43
200 41,7 0,64 0,019 16 44
250 40,7 0,41 0,020 15 45
Portanto, o menor custo é obtido usando um tubo com D = 150mm.
Usando a fórmula de Bresse:
D = 1,3 2 = 0,184m = 184mm, resultado semelhante ao
encontrado.
Para Q = 20 l/s e Hm = 45,8 m, da Figura 11, nós podemos usar
tanto a bomba I quanto a II.
Seleção da bomba.
HG = 40 m
Ds = 150 mm
Ls = 100 m
KL (sucção) = 0
Dr = 150 mm
Lr = 50 m
KL (recalque) = 70
= 0,045mm
= 1,31 x 10-6
m²/s
180
Q
L/s
Hm (tub.)
m
Vs
m/s
fs Vr
m/s
fr
0 40,0
10 41,5 0,57 0,021 0,57 0,021
20 45,8 1,13 0,019 1,13 0,019
30 52,9 1,70 0,018 1,70 0,018
40 62,8 2,26 0,017 2,26 0,017
Plotando a curva característica acima na tabela 9 verificamos que a
melhor opção é a bomba II com = 300 mm, funcionando com 20,5 l/s e Hm =
45,9 m, nesse caso, = 40% e P = Q Hm = 31CV
75
181
ASSOCIAÇÃO DE BOMBAS CENTRÍFUGAS
Razões para se usar mais de uma bomba em um sistema de
recalque:
a) ausência de uma bomba única, no mercado, que possa atender a
vazão do sistema.
b) demanda variável com o tempo.
BOMBAS ASSOCIADAS EM SÉRIE
As bombas em série são colocadas uma após a outra, recalcam a
mesma vazão e podem ser iguais ou não. A curva característica é obtida
somando-se as ordenadas das curvas características das bombas competentes:
BOMBAS ASSOCIADAS EM PARALELO
Duas ou mais bombas funcionam em paralelo quando suas entradas
e saídas são ligadas entre si. Neste caso, a altura manométrica é a mesma a
cada instante e a vazão do conjunto é a soma das vazões parciais das bombas
que compõem.
A curva característica do conjunto pode ser obtida a partir das
curvas características das bombas componentes, somando suas abcissas.
Bomba 2
Bomba 1
Q
H
b
a + b
a
182
Na figura dada, a curva A é a característica de uma das bombas e a
2A é a característica de duas máquinas iguais, operando em paralelo.
A curva S é a característica da tubulação.
A curva 2A resulta da curva A, fazendo-se AB = BC e A’B’ = B’C’.
O ponto de trabalho do conjunto é P’.
Cada bomba operando isoladamente, tem seu ponto de trabalho em
P fornecendo a vazão Q’.
Em P’ a vazão total Qt é maior que, Q, porém menor que 2Q.
Nesta situação, as bombas decidem igualmente a vazão recalcada,
de maneira que cada uma contribui com QA = Qt/2.
É interessante notar que:
- a vazão total do sistema é menor que a soma das vazões das
bombas, operando isoladamente;
- quando as bombas operam em paralelo, o ponto de trabalho se
desloca para a direita;
- se uma das bombas parar de funcionar, o ponto de trabalho será
o ponto P.
183
Q” = 2 QA
eq = A
( )
2211
2121
QQ
QQ
eq
+
+
=
Q’QA Q
A’
A
H
2A
A
Q’’
P’
S
B
P
C’
C
B1 = B2
Curva característica
do sistema
B1 B2
184
Rendimento equivalente a duas bombas operando em série. Como vimos, numa
associação em série de bombas, a vazão é a mesma para cada uma das bombas,
mas as alturas manométricas são diferentes.
Para cada bomba temos:
Bomba 1: Vazão: Q
Potência: P1
Rendimento: 1
Bomba 2: Vazão: Q
Potência: P1
Rendimento: 2
P1 = Q H1 e P2 = Q H2
75 1 75 2
P1 + P2 = Peq
ou H1 + H2 = H1 + H2
1 2 eq
eq = 1 2 (H1 + H2)
2 H1 + 1 H2
Rendimento equivalente a duas bombas operando em paralelo.
Neste caso, a altura manométrica (Hm) é a mesma para cada
bomba.
Nesse caso:
Bomba 1: Vazão: Q1
Potência: P1
Rendimento: 1
185
Bomba 2: Vazão: Q2
Potência: P2
Rendimento: 2
Do mesmo modo:
P1 = Q1 Hm e P2 = Q2 Hm
75 1 75 2
P1 + P2 = Peq Q1 Hm + Q2 Hm = (Q1 + Q2 ) Hm
75 1 75 2 75 eq
eq = 1 2 (Q1 + Q2)
2 Q1 + 1 Q2
186
Exemplo 18
Um sistema de recalque possui duas bombas idênticas instaladas em série,
dispostas conforme indicada a figura. O diâmetro das tubulações é 200 mm e
seus comprimentos, são os seguintes: 100 m entre R1 e B1, 100 m entre B1 e B2 e
B2 e R2. A temperatura da água é de 25º C, o rendimento dos motores elétricos é
de 88% e a tubulação é feita de Ferro Fundido. Conhecidas ainda as
características das bombas, pede-se:
a) A vazão de água recalcada;
b) A altura manométrica total desenvolvida pelo sistema;
c) A potência total consumida pela instalação;
d) O comportamento das bombas quanto à cavitação.
Obs: Despreze as perdas de carga localizadas.
Características da bomba
Q (l/s) 20 22,5 25 27,5 30 32,5 35
Hm (m) 87 81,5 76 69 62 54 45
(%) 80 80,5 80 78 75 71 66
NPSHr
(m)
2,0 2,5 3,0 3,5 4,2 5,0 6,0
187
SOLUÇÃO
Curva do Sistema:
D= 200mm
L= 300m
= 0.26mm
Hg 102m
= 8.965E-07m
2
/s
SISTEMA
Q (l/s) Q (m
3
/s) Hm (m)
0.0 0.00 102.0
20.0 0.02 102.7
22.5 0.02 102.9
25.0 0.03 103.1
27.5 0.03 103.3
30.0 0.03 103.5
32.5 0.03 103.8
35.0 0.04 104.1
Para 01 Bomba:
1 BOMBA
Q (l/s) Hm (m) (%) NPSHr (m)
20.0 87.0 80.00 2.00
22.5 81.5 80.50 2.50
25.0 76.0 80.00 3.00
27.5 69.0 78.00 3.50
30.0 62.0 75.00 4.20
32.5 54.0 71.00 5.00
35.0 45.0 66.00 6.00
Para 02 bombas em série:
2 BOMBAS EM SÉRIE
Q (l/s) Hm
20.0 174
22.5 163
25.0 152
27.5 138
30.0 124
32.5 108
35.0 90
188
Traçando Hm vs. Q e bomba vs. Q no mesmo gráfico
Exemplo 18
35
45
55
65
75
85
95
105
115
125
135
145
155
165
175
18 19 20 21 22 23 24 25 26 27 28 29 30 31 32 33 34 35 36
Q ( l/ s)
H ( m)
0
10
20
30
40
50
60
70
80
90
SISTEMA I
BOMBA I
BOMBA SÉRIE
RENDIMENTO
B o mb a ( %)
Usando as curvas acima:
a) A vazão de água recalcada
s
33Qg
l
=
b) A altura manométrica total desenvolvida pelo sistema 104 m (o dobro da
altura manométrica de uma única bomba).
Altura Manométrica de Cada Bomba: Hm = 52 m.
c) A potência total consumida pela instalação.
Potência Desenvolvida em cada bomba
motorBomba
m
Bomba1
75
HQ
P
××
×
=
onde Q = 33 l/s, Hm=52 m, %70Bomba = e %88motor =
CV1,37
88,070,075
5233
P Bomba1 =
××
×
=
Potência Total:
CV2,74Px2P Bomba1Total ==
Verificação do diâmetro, segundo Bresse, para K*=1,1 QKD *= , onde
s/0,33Q l= (retirado das curvas)
mm8,1990033,01,1D =×= (diâmetro comercial mais próximo
..... mm200D = ).
189
Verificando a velocidade
A
Q
V = , onde velocidadeV = ; sl0,33Qg = =
0,033m3
/s; 2
2
m031,0
4
D
Área =
×
= .
sm064,1
031,0
033,0
V ==
40,2064,160,0 << (A velocidade situa-se entre os valores aceitáveis de 0,60 e
2,40 m/s) fica definido mm200D = como econômico).
d ) O comportamento das bombas quanto à cavitação.
Primeira Bomba
!
"++#= f
v
s
atm
d h
p
H
p
NPSH ,
onde m32,0
pv
= ; m59,7
paym
= ;
m0,2Hs #= ; " = m62,0hf
m65,8)62,032,00,2(59,7NPSHd =++##=
Exemplo 18
35
45
55
65
75
85
95
105
115
125
135
145
155
165
175
18 19 20 21 22 23 24 25 26 27 28 29 30 31 32 33 34 35 36
Q (l/s)
H (m)
0.00
1.00
2.00
3.00
4.00
5.00
6.00
7.00
8.00
9.00
10.00
SISTEMA I
BOMBA I
BOMBA SÉRIE
NPSHr
NPSHr (m)
m20,5NPSHr =
rd NPSHNPSH $
20,565,8 >
Como o valor NPSH disponível é maior que o requerido, não haverá cavitação
na primeira bomba. A segunda bomba não necessita de verificação pois a
pressão na entrada desta bomba é grande o suficiente.
190
Exemplo 19
Um sistema de recalque possui duas bombas B1 e B2 instaladas em
paralelo e cujas características são conhecidas. A tubulação de recalque tem
1.200 m de comprimento e a de sucção 40 m, ambas com diâmetro de 250 mm. A
temperatura da água sendo de 20º C, a altitude do local 600 m e a tubulação é
feita de aço galvanizado. Calcular, desprezando-se as perdas localizadas, os
seguintes elementos:
a) Vazão de cada bomba estando as duas em funcionamento;
b) A altura manométrica de trabalho;
c) A potência elétrica consumida, sabendo que o rendimento dos
motores é de 90%;
d) O rendimento do sistema equivalente às duas bombas operando
em paralelo;
e) Verificar o comportamento das bombas quanto ao fenômeno de
cavitação;
f) Se a Bomba 2 deixasse de funcionar, o que aconteceria com o
sistema. Comente sua resposta.
Características das bombas
BOMBA 1
Q (l/s) 20 25 30 35 40 45 50 55
Hm (m) 53 50 47 43 39 34 27,5 22
Bomba (%) 77 77,5 77 76,5 75 72,5 69 64
NPSHr (m) 0,2 0,3 0,45 0,7 1,0 1,4 1,8 2,4
BOMBA 2
Q (l/s) 20 25 30 35 40 45 50 55
Hm (m) 42 38,5 35 30,5 24,5 17,5 9,0 3
Bomba(%) 81,5 80 78 77,5 75 72 69 65
NPSHr
(m)
0,3 0,5 0,7 0,9 1,1 1,4 1,8 2,2
191
SOLUÇÃO
Curva do Sistema:
SISTEMA
Q (l/s) Q (m3/s) Hm (m)
0 0.00 30.00
20 0.02 30.79
25 0.03 31.19
30 0.03 31.67
35 0.04 32.22
40 0.04 32.85
45 0.05 33.55
50 0.05 34.32
55 0.06 35.17
60 0.06 36.09
65 0.07 37.08
70 0.07 38.15
75 0.08 39.29
80 0.08 40.50
42 0.04 0.10
26 0.03 0.04
45 0.05 0.11
BOMBA I
Q (l/s) Hm (m) (%) NPSHr (m)
20 53.0 77.0 0.2
25 50.0 77.5 0.3
30 47.0 77.0 0.5
35 43.0 76.5 0.7
40 39.0 75.0 1.0
45 34.0 72.5 1.4
50 27.5 69.0 1.8
55 22.0 64.0 2.4
192
BOMBA II
Q (l/s) Hm (m) (%) NPSHr (m)
20 42.0 81.5 0.3
25 38.5 80.0 0.5
30 35.0 78.0 0.7
35 30.5 77.5 0.9
40 24.5 75.0 1.1
45 17.5 72.0 1.4
50 9.0 69.0 1.8
55 65.0 2.2
BOMBAS EM
PARALELO
Q (l/s) Hm
100.0 20
91.9 25
83.6 30
74.0 35
61.6 40
48.2 45
33.6 50
18.1 55
Traçando Hm vs. Q e bomba vs. Q no mesmo gráfico:
193
EXEMPLO 19
0
5
10
15
20
25
30
35
40
45
50
55
60
65
70
75
80
85
90
0 5 10 15 20 25 30 35 40 45 50 55 60 65 70 75 80 85 90 95 100 105 110
Q (l/s)
Hm (m)
0
5
10
15
20
25
30
35
40
45
50
55
60
65
70
75
80
85
90
(%)
SISTEMA I
BOMBA I
BOMBA II
BOMBA I+II
RENDIMENTO I
REDIMENTO II
a) Vazão de cada bomba obtido do gráfico anterior
vazão da bomba I s/42QI l=
vazão da bomba II s/26QII l=
b) altura manométrica desenvolvida em cada bomba Hm = 38 m (obtido do
gráfico)
c) Potência
Potência elétrica consumida na bomba I
Do gráfico da página anterior %73BombaI =
Também sabemos (dado de entrada) que: %90motor =
Portanto
CV4,32
90,073,075
3842
PI =
××
×
=
Potência elétrica consumida na bomba II
194
Do gráfico da página anterior %5,77BombaII =
Também sabemos (dado de entrada) que: %90motor =
CV9,18
90,0775,075
3826
PII =
××
×
=
Potência Total consumida:
CV3,51PPP IIITotal =+=
d) o rendimento do sistema equivalente às duas bombas operando em
paralelo
( )
IIIIII
IIIIII
eq
QQ
QQ
×+×
+××
= , onde s/42QI l= ; %73I = ; s/26QII l= ;
%5,77II =
( ) %75
2673,042775,0
2642775,073,0
eq =
×+×
+××
=
e) O NPSH disponível, verificando-se o comportamento das bombas quanto
ao fenômeno da cavitação.
e.1) bomba I
!
"++#= f
v
s
atm
d h
p
H
p
NPSH , onde m20,0
pv
= ;
m62,9
paym
= ; m0,4Hs = ; " = m1,0hf
m32,5)10,020,00,4(62,9NPSHd =++#=
195
EXEMPLO 19
0
5
10
15
20
25
30
35
40
45
50
55
60
65
70
75
80
85
90
0 5 10 15 20 25 30 35 40 45 50 55 60 65 70 75 80 85 90 95 100 105 110
Q (l/s)
Hm (m)
-5.0
-4.5
-4.0
-3.5
-3.0
-2.5
-2.0
-1.5
-1.0
-0.5
0.0
0.5
1.0
1.5
2.0
2.5
3.0
3.5
4.0
NPSHr (m)
SISTEMA I
BOMBA I
BOMBA II
BOMBA I+II
NPSHr Bomba I
NPSHr Bomba II
m20,1NPSHr =
rd NPSHNPSH $
20,132,5 > Afirmamos que a bomba I, não cavitará
Bomba 2
!
"++#= f
v
s
atm
d h
p
H
p
NPSH , onde m20,0
pv
= ;
m62,9
paym
= ; m0,4Hs = ; " = m1,0hf
m38,5)04,020,00,4(62,9NPSHd =++#=
m35,0NPSHr =
rd NPSHNPSH $ ,A bomba 2 também não cavitará.
196
f) Quais seriam as novas características do sistema se a bomba 2 deixasse
de funcionar. Comente.
EXEMPLO 19
Apenas a Bomba I Funcionando
0
5
10
15
20
25
30
35
40
45
50
55
60
65
70
75
80
85
90
0 5 10 15 20 25 30 35 40 45 50 55 60 65 70 75 80 85 90 95 10
0
105 110
Q (l/s)
Hm (m)
0
5
10
15
20
25
30
35
40
45
50
55
60
65
70
75
80
85
90
(%)
SISTEMA
BOMBA I
BOMBA II
BOMBA I+II
RENDIMENTOI
REDIMENTOII
f.1) vazão da bomba I s/45QI l=
f.2) altura manométrica desenvolvida m34Hm =
f.3) rendimento %72I =
f.4) potência elétricas consumida na Bomba I: CV5,31
90,072,075
3445
PI =
××
×
=
f.4) O NPSH disponível, verificando-se o comportamento das bombas quanto
ao fenômeno da cavitação. Como vimos:
m32,5NPSHd =
mNPSHr 40,1=
rd NPSHNPSH $
40,131,5 >
Para esta situação, onde apenas a bomba I funcionará, não haverá
problemas com cavitação
197
Exercício Proposto 14
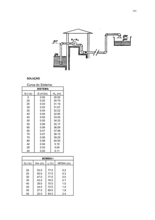
Uma estação elevatória localizada na Praia do Futuro será usada para
bombear no mínimo 300 l/s. Sabendo que a diferença entre os níveis de água
nos reservatórios de entrada e saída é 15 m, a tubulação é de ferro fundido com
1.500 m de comprimento, T = 10º C e D = 40 cm, selecione, dentre as bombas
das Figuras 9 e 10, duas bombas iguais funcionando em paralelo para este
sistema. Após selecionar a bomba mais adequada, determine a vazão total , a
vazão em cada bomba, a altura manométrica, o diâmetro do rotor de cada bomba,
a eficiência das bombas, a potência consumida em cada bomba e a potência total
consumida pelo sistema.
Solução:
D= 400mm
L= 1500m
= 0.26mm
HG= 15m
= 1.31E-06m
2
/s
SISTEMA
Q (l/s) Q (m
3
/s) Hm (m)
0 0.00 15.00
25 0.03 15.17
50 0.05 15.62
75 0.08 16.35
100 0.10 17.35
125 0.13 18.62
150 0.15 20.16
175 0.18 21.96
200 0.20 24.04
225 0.23 26.39
250 0.25 29.00
275 0.28 31.89
300 0.30 35.04
325 0.33 38.47
Para a vazão de cada bomba que é a metade da vazão requerida (Q = 150
l/s), o sistema requer uma altura manométrica mínima de 20,16 m (Ver tabela
acima).
198
Vamos então pré-selecionar a bomba a através do uso da tabela 11, a que
melhor se ajusta ao nosso caso.
Verificamos que as opções de bombas que mais se aproximam das
características requeridas são as bombas III e IV.
199
BOMBA III
0
10
20
30
40
50
60
0 20 40 60 80 100 120 160 200
Vazão (L/s)
Hm(m)
220
240
260
280
300
Tubulação
30%
40%
50%
50%
60%
60%
Verificamos que o horizonte de alcance da Bomba III está muito distante das
especificações da tubulação.
200
Analisando a bomba IV:
BOMBA IV
0
10
20
30
40
50
60
0 25 50 75 100 125 150 175 200 225 250
Vazão (L/s)
Hm(m)
220
240
260
280
300
"SISTEMA"
40%
50%
55%
62%
60%
62%
e usando um diâmetro de rotor = 220 mm:
D= 400mm
L= 1500m
= 0.26mm
HG= 15m
= 1.31E-06m
2
/s
SISTEMA BOMBA IV 220 mm
Q (l/s) Q (m
3
/s) Hm (m) Q (l/s) Hm (m)
0 0.00 15.00
25 0.03 15.17 25 28.8
50 0.05 15.62 50 28.5
75 0.08 16.35 75 28.0
100 0.10 17.35 100 27.2
125 0.13 18.62 125 25.8
150 0.15 20.16 150 24.0
175 0.18 21.96 175 21.0
200 0.20 24.04
225 0.23 26.39
250 0.25 29.00
201
275 0.28 31.89
300 0.30 35.04
325 0.33 38.47
SISTEMA EM PARALELO
Q (l/s) Hm (m)
50 28.8
100 28.5
150 28.0
200 27.2
250 25.8
300 24.0
350 21.0
EXERCÍCIO PROPOSTO 14
10
11
12
13
14
15
16
17
18
19
20
21
22
23
24
25
26
27
28
29
30
10 30 50 70 90 110 130 150 170 190 210 230 250 270 290 Q (l/s)
Hm (m)
BOMBA IV 220 mm
SISTEMA
BOMBAS EM PARALELO
Verificamos que o sistema funcionará com Q = 225 l/s e Hm = 26,4 m, o que em
termos de vazão é inaceitável.
202
Analisando a bomba IV funcionando um diâmetro de rotor = 260 mm:
BOMBA IV
0
10
20
30
40
50
60
0 25 50 75 100 125 150 175 200 225 250
Vazão (L/s)
Hm(m)
220
240
260
280
300
"SISTEMA"
40%
50%
55%
62%
60%
62%
D= 400mm
L= 1500m
= 0.26mm
HG= 15m
= 1.31E-06m
2
/s
SISTEMA BOMBA IV 260 mm
Q (l/s) Q (m
3
/s) Hm (m) Q (l/s) Hm (m)
0 0.00 15.00
25 0.03 15.17 25 39.8
50 0.05 15.62 50 39.6
75 0.08 16.35 75 39.0
100 0.10 17.35 100 38.5
125 0.13 18.62 125 37.5
150 0.15 20.16 150 36.0
175 0.18 21.96 175 34.0
200 0.20 24.04 200 30.5
225 0.23 26.39 225 26.2
250 0.25 29.00
275 0.28 31.89
300 0.30 35.04
325 0.33 38.47
203
SISTEMA EM PARALELO
Q (l/s) Hm (m)
50 39.8
100 39.6
150 39.0
200 38.5
250 37.5
300 36.0
350 34.0
EXERCÍCIO PROPOSTO 14
10
12
14
16
18
20
22
24
26
28
30
32
34
36
38
40
42
44
46
48
50
10 30 50 70 90 110 130 150 170 190 210 230 250 270 290 310 330 350 370 390 Q (l/s)
Hm (m)
BOMBA IV 260 mm
SISTEMA
BOMBAS EM PARALELO
Verificamos que o sistema funcionará com Q = 305 l/s e Hm = 36 m. Assim a
bomba escolhida é a IV funcionando um diâmetro de rotor = 260 mm.
204
Rendimento em cada bomba. Vazão em cada bomba: 152,5 l/s.
BOMBA IV
0
10
20
30
40
50
60
0 25 50 75 100 125 150 175 200 225 250
Vazão (L/s)
Hm(m)
220
240
260
280
300
"SISTEMA"
40%
50%
55%
62%
60%
62%
Assim, verificamos que o rendimento de cada bomba é de 62%.
A potência elétricas consumida em cada bomba: CV118
62,075
5,15236
P =
×
×
=
Assim a Potência total consumida no sistema é 2 P = 236 CV

Bombas e Máquinas Hidráulicas

  • 1.
    114 MÁQUINAS HIDRÁULICAS Máquinas Hidráulicassão máquinas que trabalham fornecendo, retirando ou modificando a energia do líquido em escoamento. Classificação As máquinas hidráulicas podem ser classificadas em: • Máquinas operatrizes - introduzem no líquido em escoamento a energia externa, ou seja, transformam energia mecânica fornecida por uma fonte (um motor elétrico, por exemplo) em energia hidráulica sob a forma de pressão e velocidade (exemplo: bombas hidráulicas); • Máquinas motrizes - transformam energia do líquido e a transferem para o exterior, isto é, transformam energia hidráulica em outra forma de energia (exemplos: turbinas, motores hidráulicos, rodas d’água); • Mistas - máquinas que modificam o estado da energia que o líquido possui (exemplos: os ejetores e carneiros hidráulicos). Carneiro hidráulico (equipamento patenteado (1797) pelo francês Joseph Michel Montgolfier)
  • 2.
    115 BOMBAS HIDRÁULICAS EINSTALAÇÕES DE RECALQUE Definição Bombas são máquinas operatrizes hidráulicas que fornecem energia ao líquido com a finalidade de transportá-lo de um ponto a outro. Normalmente recebem energia mecânica e a transformam em energia hidráulica. Classificação As bombas podem ser classificadas em duas categorias, a saber: • Turbo-Bombas, Hidrodinâmicas ou Rotodinâmicas - são máquinas nas quais a movimentação do líquido é desenvolvida por forças que se desenvolvem na massa líquida em conseqüência da rotação de uma peça interna (ou conjunto dessas peças) dotada de pás ou aletas chamada de roto; • Volumétricas ou de Deslocamento Positivo - são aquelas em que a movimentação do líquido é causada diretamente pela movimentação de um dispositivo mecânico da bomba, que induz ao líquido um movimento na direção do deslocamento do citado dispositivo, em quantidades intermitentes, de acordo com a capacidade de armazenamento da bomba, promovendo enchimentos e esvaziamentos sucessivos, provocando, assim, o deslocamento do líquido no sentido previsto. São exemplos de bombas rotodinâmicas as conhecidíssimas bombas centrífugas e de bombas volumétricas as de êmbolo ou alternativas e as rotativas.
  • 3.
    116 Esquemas de bombasvolumétricas Bombas Centrífugas Bombas Centrífugas são bombas hidráulicas que têm como princípio de funcionamento a força centrífuga através de palhetas e impulsores que giram no interior de uma carcaça estanque, jogando líquido do centro para a periferia do conjunto girante. Corte esquemático de uma bomba centrífuga típica
  • 4.
    117 O princípio fundamentalda bomba centrífuga foi demonstrado por Demour em 1730 em forma de dois tubos retos em forma de Tê; o qual é posto em rotação: A rotação do componente horizontal ao Tê gera uma força centrífuga, que é capaz de ultrapassar o peso do líquido. A teoria das bombas centrífugas se baseia no princípio da conservação da quantidade de momento angular. Classificação • Quanto à direção do escoamento do líquido no interior da bomba: o radial ou centrífuga pura, quando o movimento do líquido é na direção normal ao eixo da bomba (empregadas para pequenas e médias descargas e para qualquer altura manométrica, porém caem de rendimento para grandes vazões e pequenas alturas além de serem de grandes dimensões nestas condições); o diagonal ou de fluxo misto, quando o movimento do líquido é na direção inclinada em relação ao eixo da bomba (empregadas em grandes vazões e pequenas e médias alturas, estruturalmente caracterizam-se por serem bombas de fabricação muito complexa); o axial ou helicoidais, quando o escoamento desenvolve-se de forma paralela ao eixo (especificadas para grandes vazões - dezenas de m3 /s - e médias alturas - até 40 m);
  • 5.
    118 • Quanto àestrutura do rotor: o aberto (para bombeamentos de águas residuárias ou bruta de má qualidade); o semi-aberto ou semi-fechado (para recalques de água bruta sedimentada); o fechado (para água tratada ou potável) . Tipos de rotores • Quanto ao número de rotores: o estágio único; o múltiplos estágios (este recurso reduz as dimensões e melhora o rendimento, sendo empregadas para médias e grandes alturas manométricas como, por exemplo, na alimentação de caldeiras e na captação em poços profundos de águas e de petróleo, podendo trabalhar até com pressões superiores a 200 kg/cm2 , de acordo com a quantidade de estágios da bomba.
  • 6.
    119 VELOCIDADE ESPECÍFICA (ns) Écalculada pela fórmula: ns = n Q Hm³/ Onde: ns = velocidade específica, rpm n = rotação, rpm Q = vazão, m³/s Hm = altura manométrica total, m Fisicamente, a velocidade específica ns de uma bomba, representa a rotação que uma bomba semelhante deve ter para bombear uma vazão de 1m³/s, contra uma altura total de 1m. Para uma mesma bomba, ns não varia com a rotação. O valor de ns calculado pela fórmula acima é independente do líquido bombeado. Os rotores destinados a grandes alturas manométricos têm geralmente, uma baixa velocidade específica. Para pequenas alturas geralmente ns é alto.
  • 7.
    120 A potência fornecidapela bomba ao sistema hidráulico é dada por: Psaída = Q Hsaída bomba Onde: Hsaída bomba = V² + p + z é a carga total adicionada ao 2g líquido na saída da bomba. A eficiência da bomba é dada por: bomba = Psaída bomba Pentrada bomba Uma bomba é geralmente alimentada por um motor. A eficiência de um motor é dada por: motor = Psaída motor Pentrada motor Onde: Psaída motor = Pentrada bomba Exemplo 13: Uma bomba centrífuga impulsiona uma vazão de 2,5m³/s e adiciona uma carga de 20m ao sistema, se a bomba opera com 85% de eficiência, determine a potência na entrada da bomba: Pentrada bomba = Psaída bomba = Q H = 400300 Watts bomba 0,85 0,85 = 576823 W = 784 CV
  • 8.
    121 O conjunto constituídopelas canalizações e pelos meios mecânicos de elevação denomina-se sistema de recalque: suas partes principais são: - Tubulação de sucção - Conjunto moto-bomba - Tubulação de recalque Fig. 1 A altura de sucção (Hs) corresponde à distância na vertical do nível d’água no reservatório de onde se está bombeando até o eixo da bomba. Hs Hr HG Hm hr Linha piezométrica Linha de carga hs Linha piezométrica Linha de carga
  • 9.
    122 Dependendo da posiçãodo eixo da bomba em relação ao nível d’água do reservatório, Hs pode ser positiva: Ou negativa: A altura de recalque (Hr) é a distância vertical do eixo da bomba ao ponto de descarga do recalque (se o recalque for afogado, tomamos como referência o nível d’água do reservatório superior). Escorvamento de uma bomba: antes de por em funcionamento qualquer bomba, deve-se encher a canalização de sucção com o líquido a ser bombeado. As peças dentro da bomba dependem da lubrificação que lhes é fornecida pelo líquido a ser bombeado. A operação de substituição do ar por líquido é denominada escorvamento. Uma bomba é denominada afogada ou submersa, quando é instalada com eixo abaixo do nível d’água do reservatório (altura de sucção negativa). Neste caso ela fica automaticamente escorvada. Quando não é o caso, deve-se usar mecanismos que induzam ao escorvamento tais como válvulas de pé, ejetores e bombas de vácuo. Moto bomba HG Hr Hs HG Hr -Hs
  • 10.
    123 A altura geométrica(HG), é dada por: HG = Hr + Hs Em operação, verificam-se perdas de carga distribuídas e localizadas nas tubulações de sucção e recalque. (ver figura 1). A altura manométrica é dada por: Hm = HG + hs + hr Somatório das perdas de carga localizadas e distribuídas ao longa da canalização. ou Hm = HG + hf + hL A potência de um conjunto moto-bomba é dada por: P = Q Hm 75 onde P = potência em C.V. ( o qual é praticamente igual a H.P). = peso específico do líquido em Kgf/m³. Q = vazão a ser bombeada (em m³/s). = rendimento do conjunto moto-bomba. = motor x bomba (ver tabela 5) OBS: as potências dos motores comerciais normalmente fabricados no Brasil. (ver tabela 5). A fórmula acima nos mostra que o problema do dimensionamento de um sistema de recalque (determinação do diâmetro e da potência da bomba) é um problema hidraulicamente indeterminado.
  • 11.
    124 TABELA 5 3- Diâmetrocomerciais disponíveis para adutoras: Diâmetro (mm) 50mm 75mm 100mm 150mm 200mm ...+50mm Diâmetro (pol.) 2” 3” 4” 6” 8” Os motores elétricos nacionais são normalmente fabricados com as seguintes potências: (CV) HP: ¼ - 1/3 – ½ - ¾ - 1 – 1 ½ – 2 – 3 – 5 – 7 ½ - 10 – 12,5 – 15 – 20 – 25 – 30 – 35 – 40 –45 – 50 - 60 – 75 – 100 – 125 – 150 –175 - 200 e 250. OBS: para transformar de Kw para CV multiplique o valor de P (em Kw) por 1,36. Rendimento de motores elétricos ( de um determinado fabricante) HP ½ ¾ 1 1 ½ 2 3 5 10 20 30 50 100 m 64% 67% 72% 73% 75% 77% 81% 84% 86% 87% 88% 90% Rendimento de bombas centrífugas ( de um determinado fabricante) Q1/seg 5 7,5 10 15 20 25 30 40 50 100 200 B 52% 61% 66% 68% 71% 75% 80% 84% 85% 87% 88% Usar somente quando não houver um catálogo das bombas disponíveis. Folga de Segurança para determinação da Potência do Conjunto Moto-Bomba: P (HP) Folga (%) 2 50 5 30 10 20 20 15 > 20 10
  • 12.
    125 Visto que apotência é função de Hm o qual por sua vez é função do diâmetro. De fato, para se reduzir Hm, através da redução das perdas de carga, teremos que usar tubos com diâmetros relativamente grandes, implicando em custos elevados da tubulação e menores gastos com energia elétrica. Por outro lado, ao se diminuir os gastos com a tubulação, o custo com a energia aumenta: Existe um diâmetro ótimo para o qual o custo das instalações é mínimo. O custo do conjunto elevatório pode ser expresso por: C1 = Q Hm c1 75 Onde c1 é o custo médio por unidade de potência (cavalo-vapor) incluindo custo de energia. O custo das tubulações pode ser dado por: C2 = c2 D L Onde c2 é o custo médio por unidade de diâmetro por unidade de comprimento. A altura monométrica é dada por: Custo Custo mínimo Diâmetro ótimo D Custo de energia Custo de tubulação
  • 13.
    126 Hm = HG+ hf = HG + KQ² 1 Mas K = fL = 8fL = K’L 2gDA² ²gD D Onde K’ = 8f ²g Portanto, 1 pode ser escrita como: Hm = HG + K’Q²L D Portanto, o custo total da instalação é dado por: C = C1 + C2 C = Q c1 HG + K’Q²L + c2 DL 75 D Para que esse custo seja mínimo: dC = 0 dD dC = Q c1 K’Q²L - 5 + c2 L = 0 dD 75 D De onde se pode tirar o valor de D: D = K’ c1 Q 15 c2 ou D = K* Q 2 que é conhecida como fórmula de Bresse. Onde Q é dado em m³/s, D em m e K* é um coeficiente que depende basicamente da relação entre c1 e c2.
  • 14.
    127 No Brasil temse usado 0,9 < K* < 1,4 e é comum se usar K* = 1,3 nos projetos. O diâmetro comercial disponível imediatamente superior ao fornecido pela equação 2 deve ser usado, tomando o cuidado de se certificar se a velocidade nas tubulações; 0,60 < V < 2,40 m/s. Os diâmetros comerciais geralmente disponíveis no mercado podem ser encontrados na tabela 5. OBS: o diâmetro comercial escolhido para a tubulação de recalque é o que mais se aproxima (para mais ou menos) do diâmetro dado pela fórmula de Bresse enquanto que o diâmetro para a sucção deve ser um diâmetro imediatamente superior ao de recalque. Para instalações que funcionam apenas algumas horas por dia, admitem-se velocidades superiores ao intervalo dado e, para estas instalações, a ABNT (NB-92/66) aconselha: D = 0,587 n ² Q Onde n é o número de horas de funcionamento da bomba.
  • 15.
    128 Exemplo 10 Um certoconjunto elevatório trabalha nas seguintes condições: Q = 40 /s Tubulação de ferro fundido. T = 20ºC Ds = 300mm (diâmetro da tubulação de Sucção) Dr = 250mm (diâmetro da tubulação de Recalque) Hs = 3m Hr = 17m Ls = 9m Lr = 322m Peças na sucção: uma válvula de pé com crivo e uma curva de 90º. Peças no recalque: um registro de gaveta, uma curva de 90º, duas curvas de 45º e uma válvula de retenção. a) HG b) h = hf + hL c) Hm d) Potência do conjunto moto-bomba a) HG = HS + Hr = 20m b) na sucção V = 0,566m/s Re = 169800 f = 0,021 hf = f L V² = 0,010 m D 2g KL = (1,75 + 0,75 + 0,40 ) = 2,90 hL = KL V² = 0,047m 2g Portanto, hs = hf + hL = 0,057m
  • 16.
    129 No recalque: V =0,815 m/s Re = 203718 f = 0,021 hf = 0,93m KL = 3,55 hL = 0,12m hr = hf + hL = 1,05m Perda de carga total: 1,11m (c) Hm = HG + h = 21,11m (d) P = Q Hm 75 Como nós não temos um catalogo da bomba a ser usada, usaremos a tabela 5: Para Q = 40 /s bomba = 0,84 motor = 0,87 = bomba x motor = 0,73 Assim: P = (1000) (0,04) (21,11) (75) (0,73) P = 15,4 CV O conjunto moto-bomba disponível a ser usado é o de P = 20CV.
  • 17.
    130 Exemplo 11 Deseja-se bombear36m³/hora através de um sistema de recalque composto de tubos de ferro fundido cujas características são: Sucção: Ls = 7m, Hs = 3m Peças: válvula de pé com crivo; curva de 90º Recalque: Lr = 20m, Hr = 10m Peças: válvula de retenção curva de 90º registro de gaveta saída de canalização Dimensione as tubulações e o conjunto moto-bomba para tal sistema. (considere T = 20ºC). Diâmetro: Usando a fórmula de Bresse: Q = 36 m³ = 36 m³/s = 0,01m³/s hora 3600 D = K* Q = 1,3 0,01 = 0,13m Portanto escolhemos: Ds = 150mm e Dr = 125mm (ver tabela 5) a) Potência do motor:
  • 18.
    131 b) HG =HS + Hr = 13m na sucção V = 0,566m/s Re = 84883 f = 0,025 hf = 0,019 m KL = 3,15 hL = 0,047m No recalque: V = 0,815 m/s Re = 101859 f = 0,026 hf = 0,141m KL = 2,75 + 0,40 + 0,20 + 1,00 = 4,35 hL = 0,147m Perda de carga total: 0,35m Portanto: Hm = HG + h = 13,35m Potência do motor: = bomba x motor Usando a tabela 5: bomba = 0,66 motor = 0,72 = 0,48 Portanto: P = Q Hm = 3,71 CV 75 Usa-se um motor com potência de 5CV.
  • 19.
    132 Exercício proposto 8: Dimensionaras tubulações e determinar a potência do motor de um sistema de captação de água bruta para uma comunidade de 900 pessoas, sabendo que T = 20ºC. Demanda = 250 /hab/dia Tempo de bombeamento: 6 horas/dia HG = 20m Ls = 10m Lr = 300m Tubos de PVC Peças na sucção: Válvula de pé com crivo curva de 90º Peças no recalque: 1 curvas de 90º 2 curvas de 45º válvula de retenção registro de gaveta, aberto
  • 20.
    133 SOLUÇÃO DO EXERCÍCIOPROPOSTO 8 Consumo: 900 x 250 = 225000 dia Como a bomba é dimensionada para funcionar 6 horas por dia: Q = 225000 = 0,0104m³ 6 x 3600 x 1000 s Portanto: D = 0,587 n ² Q D = 0,0938 m Adota-se, então, um diâmetro de 100mm para recalque e 125mm para sucção. Perdas de carga Recalque: V = 1,32 m/s (pvc) = 0,0015mm Re = 132000 f = 0,017 hf = 4,56m KL = 2,9 hL = 0,26 Sucção: V = 0,85 m/s Re = 105933 f = 0,018 hf = 0,05m KL = 4,15 hL = 0,15m
  • 21.
    134 Perda total: 5,02m Hm= 25,02m bomba = (10 /s) = 0,66 motor = 0,72 = 0,48 P = 7,23 CV Usa-se um motor de P = 10 CV.
  • 22.
    135 CAVITAÇÃO Na interface gás-líquidode um determinado material, há uma constante troca de moléculas entre as fases líquida e gasosa. A presença de moléculas na fase gasosa perto da superfície líquida da origem a chamada pressão de vapor (pv) à medida que a temperatura do líquido aumenta, mais moléculas saem da fase líquida para a gasosa, aumentando a pressão de vapor (ver tabela 6). Quando a temperatura chega a um valor para o qual a pressão de vapor se iguala à pressão atmosférica, a qual é função da altitude (ver tabela 6), a ebulição do líquido acontece! Em condutos fechados e em bombas, a água vaporiza nos pontos onde a pressão atinge valores inferiores à pressão de vapor, este fenômeno é conhecido como cavitação.
  • 23.
    136 TABELA 6 Temperatura ºC Pressão de Vapor,pv (N/m²) Peso específico, (N/m³) Hv = pv/ (m) 0 611 9810 0,06 5 873 9810 0,09 10 1266 9810 0,13 15 1707 9800 0,17 20 2335 9790 0,24 25 3169 9781 0,32 30 4238 9771 0,43 35 5621 9751 0,58 40 7377 9732 0,76 45 9584 9713 0,99 50 12331 9693 1,27 55 15745 9668 1,63 60 19924 9643 2,07 65 25015 9619 2,60 70 31166 9594 3,25 75 38563 9565 4,03 80 47372 9535 4,97 85 57820 9501 6,09 90 70132 9467 7,41 95 84552 9433 8,96 100 101357 9398 10,78 Pressão Atmosférica em função da altitude Altitude (m) Altura de água equivalente à pressão atmosférica (m) 0 10,33 300 9,99 600 9,65 900 9,25 1200 8,91 1500 8,57 1800 8,22 2100 7,91 2400 7,60 2700 7,33
  • 24.
    137 O aparecimento depressões iguais ou inferiores à pressão de vapor da água ( a qual é função da temperatura) pode causar uma das seguintes conseqüências: - Se a bolhas formadas em virtude da vaporização da água forem generalizadas em toda a seção de entrada da bomba, como a pressão interna nas bolhas (pi) é maior que a pressão fora das bolhas (pe), (na entrada da bomba) as bolhas tendem a se expandir até o ponto de cortar o fluxo, cessando o bombeamento. - Se as bolhas forem localizadas em alguns pontos e não generalizadas ao ponto de interromper o fluxo, a situação no rotor, será a seguinte: Assim, no rotor, pe > pi, neste caso as bolhas tendem a desaparecer em violentas implosões, os quais geram ondas de choque que causam vibrações Rotor pe pi Motor pe < 0 Linha piezométrica pe pi Motor pe < 0 Linha piezométrica
  • 25.
    138 na bomba, ruídodesagradável (martelamento) destruição das palhetas e paredes do rotor e queda do rendimento da bomba. Para que uma dada bomba funcione sem cavitar, é necessário que a pressão, na entrada da bomba, seja sempre superior à pressão de vapor para a temperatura de funcionamento da bomba. Considere a seguinte instalação de recalque. Aplicando a equação de Bernoulli entre os pontos 0 e 1 (considerando, neste caso, pressões absolutas). patm = Hs + p1 + V1² + hs + h* 2g Onde hs representa a soma das perdas de carga distribuídas e localizadas na tubulação de sucção. Motor patm Linha de carga Rotor Hs Tubulação de sucção hs = ( hf + hL) 1
  • 26.
    139 patm é funçãoda altitude do local onde está a bomba e pode ser obtida através da tabela 6. h* é a soma das perdas de carga internas do rotor e estão ligadas à forma e o tipo do rotor. OBS: para efeito de cálculo, vamos considerar V1 a velocidades do fluído na tubulação de sucção. Visando evitar a cavitação no rotor da bomba p1 > pv, ou p1 = patm - (Hs + V1² + hs + h*) > pv ou 2g Hs < patm - (pv + V1² + hs + h*) 1 2g Seria a máxima altura de sucção permissível. Considerando pv = V1² = hs = h* = 0 2g Hsmáx = patm, a qual, para o nível mas: Hsmáx = 10,33m (tabela 6) No entanto, como existem perdas e pv é sempre maior que zero, na prática, este valor de Hsmáx se situa em torno de 6m. A equação 1 pode ser reescrita como: patm - (Hs + pv + hs) > V1² + h* 2 2g
  • 27.
    140 O termo dolado esquerdo da equação 2 é denominado (NPSH)d (Net Positive Suction Head) ou NPSH disponível e envolve variáveis que dependem das condições do local de instalação da bomba. O termo do lado direito da equação 2 é denominado (NPSH)r ou NPSH requerido e depende do diâmetro da tubulação de sucção e de características geométricas e do tipo de bomba. Nós podemos então afirmar que a bomba não cavitará se: (NPSH)d (NPSH)r Os fabricantes de bombas geralmente fornecem em seus catálogos o valor de (NPSH)r como função do diâmetro do rotor (em mm) e da vazão. (ver exemplo nas Figuras 9 e 10).
  • 28.
  • 29.
  • 30.
    143 Quando se desconhecea variação de (NPSH)r com Q (fornecida pelo fabricante), o seguinte procedimento alternativo pode ser realizado: Nós vimos que as causas das perdas h* estão ligadas à forma e a geometria do rotor. Assim, na ausência de dados de ensaios da bomba, pode-se estimar h* através da expressão: h* = . Hm 3 onde é o chamado coeficiente de cavitação da bomba. Experiências revelaram que: = 1,2 x 10 ³ ³ ns 4 (fórmula de Stepanoff) Onde ns, como vimos é a velocidade específica, e é dada por: ns = n Q½ (Hm)¾ para ns = (rpm) e Hm (m) n (rpm) Q (m/³s) Equação 3 teremos que: (NSPH)r = Hm + V1² 5 2g Pode-se, então, através do uso das equações 4 e 5 estimar o valor de (NPSH)r.
  • 31.
    144 Exemplo 13 O (NPSH)rde uma certa bomba instalada a 600m de altitude é 3m. Se a água estiver a 65ºC e a perda de carga na sucção é de 1,5m, determine a máxima altura de sucção permitida: Usando a equação 1 patm - (Hs + pv + hs) > (NPSH)r Hs < patm - (pv + hs + (NPSH)r) 1 usando a tabela 6 patm (600m) = 9,65m pv (65ºC) = 2,60m Assim: Hs < 9,65 - (2,60 + 1,50 + 3,00) Hs = 2,55m. Exemplo 14 Para uma determinada bomba: Q = 700m³/h Hm = 30m n = 1,185rpm
  • 32.
    145 Se esta bombalocalizada ao nível do mar, deve impulsionar água a 85ºC como velocidade de sucção de 4,1m/s, sabendo que as perdas na sucção foram de 1,354m, determine a máxima altura de sucção: Usando a equação 1: Hs < patm - (pv + hs + (NPSH)r) (NPSH)r = Hm + V1² 2g = 1,2 x 10 ³ ³ ns ns = n Q = 1,185 700 3.600 = 40,8rpm (Hm) (30) = 1,2 x 10 ³ ³ (40,8) = 0,168 (NPSH)r = Hm + V1² = 5,896m 2g patm = 10,33m (nível do mar, tabela 6) pv = 6,08m (85ºC tabela 6) Assim: Hs < 10,33 - (6,08 + 1,354 + 5,896) Hs < -3m Neste caso, a bomba deverá operar afogada de pelo menos 3m. 3 m 1/2 3/4 3/4
  • 33.
    146 Exercício proposto 9 Abomba II (tabela 9) impulsiona uma vazão de 50 /s. Determinar a máxima altura de sucção para esta bomba, sabendo que: - A bomba está instalada a 900m - T = 30ºC - A tubulação de sucção é feita de ferro fundido, com L = 25m, D = 150mm e contém 1 curva de 90º e uma válvula de pé com crivo.
  • 34.
    147 SOLUÇÃO DO EXERCÍCIOPROPOSTO 9 Para Q = 0,05m³/s e D = 0,150m V = 2,83m/s. (ferro fundido) = 0,26mm Re = VD = 527895 f = 0,023 hs = (Kcurva + Kválvula + curva + fL ) V² D 2g hs = 2,76m (NPSH)r = 3,00m (tabela 10) Hs < Hatm - Hv - hs + (NPSH)r Hs < 9,25 - 0,43 - 2,76 - 3,00 Hs < 3,06m
  • 35.
    148 Exercício proposto 10 Umacerta bomba está operando com 1400rpm ao nível do mar, impulsionando uma vazão de 0,42m³/s de água a 40ºC. Se Hm = 85m, o diâmetro do tubo de sucção é 30 cm e hs = 1m. Determine a máxima altura de sucção para evitar cavitação na bomba.
  • 36.
    149 SOLUÇÃO DO EXERCÍCIOPROPOSTO 10 ns = n Q = 32,4rpm (Hm) = 0,0012 (ns) = 0,124 (NPSH)r = Hm + V² = 10,54 + 1,81 = 12,35m 2g Hs < Hatm - Hv - hs - (NPSH)r Hs < 10,36 - 0,76 - 1 - 12,35 Hs < -3,75m Ou seja, a bomba tem que trabalhar afogada de pelo menos 3,75m. 1/2 3/4 4/3
  • 37.
    150 CURVA CARACTERÍSTICA DEUMA TUBULAÇÃO A fórmula usada para cálculo da perda de carga: hf + hL = fL Q² + KL V² D 2gA² 2g Pode ser reescrita na forma: hf + hL = KQ² 1 Onde K = fL + ( KL) 2gDA² 2gA² coeficiente geométrico de atrito. A razão de se escrever a fórmula de Darcy-Weisbach nessa forma é facilitar a solução de problemas que envolvem redes de conduto (tubos em série e tubos em paralelo). OBS: as unidades de K no sistema internacional são s² m A curva característica de uma tubulação de recalque é a curva Hm e Q. Nós vemos que: Hm = HG + hf + hL Usando 1 , teremos: Hm = HG + KQ²
  • 38.
    151 Esta curva, parauma dada tubulação, tem a forma: Exemplo 14: Dada a tubulação de recalque abaixo: Sabendo que: D1 = 150mm, L1 = 300m D2 = 100mm, L2 = 300m e que a tubulação é feita de ferro fundido, determine a curva característica da tubulação OBS: despreze as perdas de carga localizadas e na tubulação de sucção. T = 20ºC D1 D2 R2 R1 HG = 50m L2 L1 HG hf + hL Q Hm
  • 39.
    152 D1 = 150mm D2 = 100 mm L1 = 300 m L2 = 300 m = 0,12 mm = 0,000001 m²/s Hg = 50 m Nesse caso: Hm = HG + hf1 + hf2 hf1 = f1 L1 V1² e hf2 = f2 L2 V2² D1 2g D2 2g hf1 = 102 f1V1² e hf2 = 153f2V2² Re1 = V1D1 = 150000V1 Re2 = V2D2 = 100000V2 = 0,12mm f1 = 0,25 Log (2,162 x 10 + 1,260 x 10 ) ² V1 f2 = 0,25 Log (3,243 x 10 + 1,815 x 10 ) ² V2
  • 40.
    153 Q (m³/h) V1 (m/s) V2 (m/s) f1 f2 hf1 (m) hf2 (m) Hm (m) 00,00 0,00 0,0000 0,0000 0,00 0,00 50,00 10 0,16 0,35 0,0268 0,0249 0,07 0,48 50,54 20 0,31 0,71 0,0238 0,0225 0,24 1,72 51,96 30 0,47 1,06 0,0225 0,0215 0,51 3,70 54,21 40 0,63 1,41 0,0218 0,0209 0,88 6,40 57,28 50 0,79 1,77 0,0213 0,0205 1,34 9,83 61,17 60 0,94 2,12 0,0209 0,0203 1,90 13,97 65,87 70 1,10 2,48 0,0207 0,0201 2,55 18,83 71,38 80 1,26 2,83 0,0204 0,0199 3,30 24,41 77,71 90 1,41 3,18 0,0203 0,0198 4,14 30,71 84,85 100 1,57 3,54 0,0201 0,0197 5,08 37,72 92,79 0 10 20 30 40 50 60 70 80 90 100 0 20 40 60 80 100 120 Q(m3/h) Hm(m)
  • 41.
    154 CURVA CARACTERÍSTICA DEUMA BOMBA As bombas são capazes de trabalhar com variados valores de vazão, potência absorvida, rotação e rendimento. A curva característica de uma determinada bomba relaciona os valores de Hm e Q e P e Q para diversos valores de rotação (n) e o rendimento ( ) e tem a seguinte forma geral: Variação das curvas características: 1- diâmetro do rotor ( ) Cada diâmetro de rotor corresponde uma curva caracterísitica. Se o diâmetro for modificado, as curvas características apresentam as seguintes relações com as características originais: Q2 = 2 Q1 1 H2 = 2 ² H1 1 P2 = 2 ³ P1 1 Usando-se as relações acima pode-se alterar o diâmetro do rotor e assim adaptar a bomba a novas necessidades de vazão e/ou altura manométrica (esta é a chamada “usinagem” do rotor) Q Hm
  • 42.
    155 2- Rotação (n) Umavez mantidos constantes a forma e o diâmetro do rotor, a energia transferida do fluído varia com a rotação, de acordo com as seguintes relações: Q2 = n2 H2 = n2 ² e Q1 n1 H1 n1 P2 = n2 ³ P1 n1 No Brasil, os valores de rotação mais comuns são: 3.500 rpm e 1.750 rpm, sendo também mais raramente encontrados valores de rotação de 1.150 rpm e 885 rpm. Os valores de rotação são determinados pela configuração interna das partes elétricas do motor e também pelo valor da freqüência elétrica fornecida pela concessionária de Energia. Deve-se dar preferência a valores baixos de rotação, assim, preferencialmente deve-se optar pela rotação de 1.750 rpm, pois geralmente bombas com rotores de baixa rotação apresentam menos problemas de manutenção e menos gasto com energia, comparados à mesma bomba sujeita a uma rotação maior, entretanto, para valores baixos de potência (geralmente P < 10 CV’s), não há outra opção a não ser bombas com rotores com rotação de 3.500 rpm. 3 - Parábolas de Isoeficiência: Como nós vimos, a curva característica de uma bomba varia com o diâmetro do rotos e/ou com o número de rotações do rotor. Nós podemos constituir um gráfico com curvas Hm e para diferentes valores de rotação ou de diâmetro do rotor. A seguir, são traçadas as chamadas parábolas de Isoeficiência, as quais são curvas de rendimento constante. Essas parábolas são determinadas do seguinte modo:
  • 43.
    156 Como vimos, paradois valores de rotação do rotor de uma mesma bomba: : Q2 = n2 e H2 = n2 ² Q1 n1 H1 n1 Ou para dois diâmetros diferentes: Q2 = 2 e H2 = 2 ² Q1 1 H1 1 Desta forma, em ambos os casos Q1² = Q2² = constante. H1 H2 Se agora usarmos a fórmula da potência: H1 = 75P1 1 e Q1 = 75P1 1 Q1 H1 Q1² = P1² (75)² ( 1)² x Q1 = 75P1Q1 1 H1 ( )² (H1)² P175 1 (H1)² = 75 P2 Q2 2 (H2)² Portanto: H2 ² 1 = P2 Q2 2 H1 P1 Q1 Mas, nós vimos que: H2 = n2 ² = 2 ² H1 n1 1 P2 = n2 ³ = 2 ³ e P1 n1 1
  • 44.
    157 Q2 ² =n2 2 Q1 n1 1 Assim: n2 1 = n2 ³ n2 2 n1 n1 n1 ou 1 = 2 Portanto nós provamos que as curvas geradas para Q² = constante H tem rendimento igual. Desta forma, nós podemos traçar as chamadas parábolas de isoeficiência:
  • 45.
    158 BOMBA I 0 10 20 30 40 50 60 0 1020 30 40 50 Vazão (L/s) Hm(m) 220 240 260 280 300 20% 30% 40% 40% 43% 43% BOMBA II 0 10 20 30 40 50 60 0 20 40 60 80 Vazão (L/s) Hm(m) 220 240 260 280 300 30 40 50 50% 54 54 40 FIGURA 9 n= 1750 rpm n= 1750 rpm
  • 46.
    159 BOMBA III 0 10 20 30 40 50 60 0 4080 120 160 200 Vazão (L/s) Hm(m) 220 240 260 280 300 30% 40% 50% 50% 60% 60% BOMBA IV 0 10 20 30 40 50 60 0 50 100 150 200 250 Vazão (L/s) Hm(m) 220 240 260 280 300 40% 50% 55% 62% 60% 62% FIGURA 10 n= 1750 rpm n= 1750 rpm
  • 47.
    160 PONTO DE TRABALHO Paraum determinado sistema de recalque, uma vez que a bomba é ligada, a vazão aumenta gradativamente, aumentando Hm, até atingir o equilíbrio no ponto em que as curvas características da bomba e da tubulação se cruzam. Este ponto é chamado o ponto de trabalho de sistema. Onde Qt é a vazão de trabalho. A escolha de uma bomba deve ser baseada no princípio de que o ponto de trabalho deve estar localizado na faixa em que a bomba tem rendimento máximo, uma vez satisfeitas as exigências de vazão e altura manométrica. Hm Qt Bomba Tubulação
  • 48.
    161 SELEÇÃO DE UMABOMBA Uma vez conhecidas a vazão e a altura manométrica, o próximo passo é consultar o gráfico de pré-seleção de bombas fornecido pelo fabricante: Esses gráficos fornecem geralmente um grupo de bombas adequados para os valores de Q e Hm do sistema de recalque. Eles também podem conter o tamanho da bomba, a potência do motor e a frequência da corrente elétrica que alimentará o motor. Um exemplo deste tipo de gráfico de pré-seleção de bombas está apresentado na figura 11: Uma vez escolhido um grupo de bombas através do gráfico de pré- seleção, nós usamos a curva característica especifica de cada uma das bombas pré-selecionadas para determinar a bomba mais eficiente e o ponto de trabalho do sistema.
  • 49.
    162 Exemplo 16 Uma bombaé usada para impulsionar 70 /s de água entre dois reservatórios cuja diferença entre a linhas d’água é 20 m. Se os tubos de aço comercial, cujo comprimento total é igual a 1000m e com 200 mm de diâmetro forem usados, selecione dentre as 4 bombas das figuras 9 e 10 a bomba mais apropriada e suas condições de operação. Considere T = 20ºC (despreze as perdas localizadas). Solução: V = Q = 2,23 m/s A Re = VD = 4,5 x 10 = (aço comercial) = 0,045 mm f = 0,016 (fórmula de Swanee & Jain) hf = f L V² = 20,27 m D 2g Portanto, Hm = HG + hf = 40,27 m
  • 50.
    163 De acordo como gráfico de pré-seleção das bombas ( figura 11), tanto a bomba II como a bomba III podem ser usadas: Traçaremos então, a curva característica da tubulação para decidirmos que bomba usaremos. Para o intervalo de vazões da Bomba II Q V f hf Hm (l/s) (m/s) (m) (m) 0 0,00 0,0000 0,00 20,00 10 0,32 0,0207 0,53 20,53 20 0,64 0,0184 1,90 21,90 30 0,95 0,0174 4,05 24,05 40 1,27 0,0168 6,95 26,95 50 1,59 0,0164 10,60 30,60 60 1,91 0,0161 14,99 34,99 70 2,23 0,0159 20,12 40,12 80 2,55 0,0157 25,99 45,99 90 2,86 0,0156 32,59 52,59
  • 51.
    164 Para o intervalode vazões da Bomba III: Q V f hf Hm (l/s) (m/s) (m) (m) 0 0,00 0,0000 0,00 20,00 20 0,64 0,0184 1,90 21,90 40 1,27 0,0168 6,95 26,95 60 1,91 0,0161 14,99 34,99 80 2,55 0,0157 25,99 45,99 100 3,18 0,0155 39,93 59,93 120 3,82 0,0153 56,81 76,81 Nós podemos agora traçar a curva característica da tubulação no mesmo gráfico das curvas da bomba II e III. BOMBA II 0 10 20 30 40 50 60 0 10 20 30 40 50 60 70 80 Vazão (L/s) Hm(m) 220 240 260 280 300 TUBULA ÇÃO Ponto de Trabalho 30% 40% 50% 50% 54% 54% 40%
  • 52.
    165 BOMBA III 0 10 20 30 40 50 60 0 2040 60 80 100 120 Vazão (L/s) Hm(m) 220 240 260 280 300 Tubulação 30% 40% 50% 50% 60% 60%
  • 53.
    166 Para a bombaII, as características que mais se aproximam dos requisitos do projeto são: = 300 mm Q = 74 l/s e Hm = 43 m = 49% Nesse caso, P = Q Hm = 86,6 CV 75 De acordo com a disponibilidade de motores nacionais (Tabela 5), usaremos um motor de 100 CV. Para a bomba III temos duas alternativas: 1- = 260 mm, nesse caso: Q = 70 l/s, Hm = 40,3 m e = 53 %. Nesse caso, P = Q Hm = 71,0 CV 75 De acordo com a disponibilidade de motores nacionais, usaremos um motor de 80 CV. 2- = 280 mm, nesse caso: Q = 79 l/s, Hm = 44 m e = 56 %. Nesse caso, P = Q Hm = 82,8 CV 75 De acordo com a disponibilidade de motores nacionais, usaremos um motor de 100 CV. De acordo com os resultados acima, a bomba III funcionando com um rotor de 280 mm de diâmetro consome menos energia do que a bomba II e ainda fornece uma margem extra de segurança no que se refere a Q e Hm em
  • 54.
    167 relação a bombaIII funcionando com um rotor de = 260 mm, portanto, Selecionamos a bomba escolhida é a III ( 280).
  • 55.
    168 Exemplo 17 Dada aseguinte instalação de recalque, cuja tubulação é feita de ferro fundido, e os diâmetro da sucção e do recalque são de respectivamente 600 mm e 500 mm. Cujas peças são: 1 válvulas de pé com crivo 2 curva de 90º 3 registros de gaveta, aberto 4 válvula de retenção Dada a curva característica da bomba a ser instalada: Q (l/s) 110 300 450 560 660 760 Hm (m) 22 21 20 19 18 17 3 1 19m 5m 1m 12m 20m 23m 2 2 4 3
  • 56.
    169 Determine as característicasdo ponto de trabalho desse sistema de recalque (use BOMBA = 65%). Solução: h = hf + hL h = f L + KL V² = f L + KL Q² D 2g D 2gA² Na sucção: L = 13m D = 0,6 m KL = 2,5 + 0,40 + 0,20 = 3,1 hs = (13,8 fs + 2,0)Q² No recalque: L = 39 m, D = 0,5 m KL = 2,75 + 0,20 + 0,40 + 1,00 = 4,35 saída hr = (103,1 fr + 5,8 ) Q² Portanto: Hm = HG + hs + hr Hm = 18 + (13,8 fs + 103,1 fr + 7,8) Q² ( = 0,26 mm). HG = 18 m Ds = 600 mm Ls = 13 m KL (sucção) = 3,1 Dr = 500 mm Lr = 39 m
  • 57.
    170 KL (recalque) =4,35 = 0,26 mm = 10-6 m²/s Q l/s Hm (bomba) m Hm (tub.) m Vs m/s fs Vr m/s fr 0 18,0 110 22 18,1 0,39 0,0183 0,56 0,0185 300 21 18,9 1,06 0,0171 1,53 0,0176 450 20 20,0 1,59 0,0169 2,29 0,0174 560 19 21,1 1,98 0,0167 2,85 0,0173 660 18 22,2 2,33 0,0167 3,36 0,0172 760 17 23,6 2,69 0,0166 3,87 0,0172 Nós agora podemos montar a seguinte tabela do gráfico , nós constatamos que no ponto de trabalho do sistema Q = 452 l/s e Hm = 19,9 m: Nesse caso: P = Q Hm = 185 CV 75 0 5 10 15 20 25 0 110 300 450 560 660 760 Vazão (L/s) Hm(m) tubulação Bomba
  • 58.
    171 Exercício proposto 11 Umabomba possui uma curva característica dada pela seguinte tabela: H (m) 25,91 24,99 24,08 22,86 21,34 18,90 Q (l/s) 11,33 17,00 22,65 28,32 33,98 39,64 Essa bomba deve recalcar água através de uma tubulação de aço comercial de 150 mm de diâmetro. Sabendo que HG = 12,2 m e que as perdas de carga localizadas podem ser desprezadas e que o comprimento da tubulação é de 430,5 m, calcule as características do ponto de trabalho do sistema. (considere T = 20ºC).
  • 59.
    172 SOLUÇÃO DO EXERCÍCIOPROPOSTO 11 Fazendo a seguinte tabela e gráfico: HG = 12,2 m Ds = 150 mm Ls = 30,5 m KL (sucção) = 0 Dr = 150 mm Lr = 400 m KL (recalque) = 0 = 0,045 mm = 10-6 m²/s Q l/s Hm (bomba) m Hm (tub.) m Vs m/s fs Vr m/s fr 0 12,2 11,33 25,91 13,4 0,64 0,0196 0,64 0,0196 17 24,99 14,7 0,96 0,0185 0,96 0,0185 22,65 24,08 16,5 1,28 0,0179 1,28 0,0179 28,32 22,86 18,8 1,60 0,0174 1,60 0,0174 33,98 21,34 21,5 1,92 0,0171 1,92 0,0171 39,64 18,9 24,6 2,24 0,0169 2,24 0,0169 Nós verificamos que, no ponto de trabalho, Q = 33,80 L/s e Hm = 21,6 m. Neste caso, usando = 80% (Tabela 5), a potência na entrada da bomba é de: 0 5 10 15 20 25 30 0 5 10 15 20 25 30 35 40 45 Vazão (L/s) Hm(m) tubulação Bomba
  • 60.
    173 CV12 75 HQ P m ==. Exercício proposto 12 Selecione a bomba mais adequada, dentre as disponíveis nas figuras 9 e 10, a ser usada em um sistema de recalque, no qual Q = 30 l/s, HG = 20 m, L = 600 m e D = 150 mm. Sabendo que o tubo é feito de ferro galvanizado, determine as características do ponto de trabalho do sistema.
  • 61.
    174 SOLUÇÃO DO EXERCÍCIOPROPOSTO 12 D = 150 mm L= 600 m = 0,15 mm = 1,31x10 -6 m 2 /s HG= 20 m BOMBA I Q V f hf Hm (l/s) (m/s) (m) (m) 0 0,00 0,0000 0,00 20,00 5 0,28 0,0258 0,42 20,42 10 0,57 0,0234 1,53 21,53 15 0,85 0,0224 3,29 23,29 20 1,13 0,0218 5,71 25,71 25 1,41 0,0215 8,77 28,77 30 1,70 0,0212 12,48 32,48 35 1,98 0,0210 16,83 36,83 40 2,26 0,0209 21,83 41,83 45 2,55 0,0208 27,48 47,48 BOMBA II Q V f hf Hm (l/s) (m/s) (m) (m) 0 0,00 0,0000 0,00 20,00 10 0,57 0,0234 1,53 21,53 20 1,13 0,0218 5,71 25,71 30 1,70 0,0212 12,48 32,48 40 2,26 0,0209 21,83 41,83 50 2,83 0,0207 33,76 53,76
  • 62.
    175 Para Q =30 l/s e Hm = 32,48 m, pela figura 11: Assim, verificamos que tanto a bomba I quanto a II podem ser usadas.
  • 63.
    176 BOMBA I 0 10 20 30 40 50 60 0 510 15 20 25 30 35 40 45 Vazão (L/s) Hm(m) 220 240 260 280 300 TUBULAÇÃO Ponto de Trabalho 20% 30% 40% 40% 43% 43% BOMBA II 0 10 20 30 40 50 60 0 10 20 30 40 50 60 70 80 90 Vazão (L/s) Hm(m) 220 240 260 280 300 Tubulação Ponto de Trabalho 30% 40% 50% 50% 54% 54% 40% 34 m 32 l/s 33 m 39,8 m
  • 64.
    177 Ao plotarmos acurva característica da tubulação na Figura 9, nós vemos então que temos duas alternativas: Bomba I com = 260 mm, Q = 32 l/s, Hm = 34 m e = 38 %. P = Q Hm = 38,2 CV == Motor Comercial de 40 CV 75 Bomba II com = 240 mm, Q = 32 l/s, Hm = 33 m e = 51 %. P = Q Hm = 27,6 CV == Motor Comercial de 30 CV 75 Bomba II com = 260 mm, Q = 37 l/s, Hm = 39,8 m e = 53 %. P = Q Hm = 37 CV == Motor Comercial de 40 CV 75 Sugere-se a Bomba II com = 260 mm ou = 240 mm
  • 65.
    178 Exercício proposto 13 Paraum determinado sistema de recalque: Q = 20 l/s HG = 40 m L = 150 m KL = 70 T = 10 ºC Tubo feito de aço comercial. Selecione o diâmetro (dentre os usualmente disponíveis), e a bomba (dentre as disponíveis nas figuras 9 e 10) mais eficientes, sabendo que o custo total do sistema de recalque é dado por: C = D + 0,75 P + 18 Onde D é o diâmetro do tubo, em mm, P é a potência da bomba, em CV ,e C é dado em 1.000 R$. Compare com o resultado obtido usando a fórmula de Bresse e comente. 0,5
  • 66.
    179 SOLUÇÃO DO EXERCÍCIOPROPOSTO 13 D (mm) Hm (tub.) (m) V (m/s) f P (CV) p/ 71% C (1000 R$) 60 343,3 7,07 0,020 129 122 75 153,0 4,53 0,019 57 70 100 72,4 2,55 0,019 27 48 125 52,5 1,63 0,019 20 44 150 45,8 1,13 0,019 17 43 200 41,7 0,64 0,019 16 44 250 40,7 0,41 0,020 15 45 Portanto, o menor custo é obtido usando um tubo com D = 150mm. Usando a fórmula de Bresse: D = 1,3 2 = 0,184m = 184mm, resultado semelhante ao encontrado. Para Q = 20 l/s e Hm = 45,8 m, da Figura 11, nós podemos usar tanto a bomba I quanto a II. Seleção da bomba. HG = 40 m Ds = 150 mm Ls = 100 m KL (sucção) = 0 Dr = 150 mm Lr = 50 m KL (recalque) = 70 = 0,045mm = 1,31 x 10-6 m²/s
  • 67.
    180 Q L/s Hm (tub.) m Vs m/s fs Vr m/s fr 040,0 10 41,5 0,57 0,021 0,57 0,021 20 45,8 1,13 0,019 1,13 0,019 30 52,9 1,70 0,018 1,70 0,018 40 62,8 2,26 0,017 2,26 0,017 Plotando a curva característica acima na tabela 9 verificamos que a melhor opção é a bomba II com = 300 mm, funcionando com 20,5 l/s e Hm = 45,9 m, nesse caso, = 40% e P = Q Hm = 31CV 75
  • 68.
    181 ASSOCIAÇÃO DE BOMBASCENTRÍFUGAS Razões para se usar mais de uma bomba em um sistema de recalque: a) ausência de uma bomba única, no mercado, que possa atender a vazão do sistema. b) demanda variável com o tempo. BOMBAS ASSOCIADAS EM SÉRIE As bombas em série são colocadas uma após a outra, recalcam a mesma vazão e podem ser iguais ou não. A curva característica é obtida somando-se as ordenadas das curvas características das bombas competentes: BOMBAS ASSOCIADAS EM PARALELO Duas ou mais bombas funcionam em paralelo quando suas entradas e saídas são ligadas entre si. Neste caso, a altura manométrica é a mesma a cada instante e a vazão do conjunto é a soma das vazões parciais das bombas que compõem. A curva característica do conjunto pode ser obtida a partir das curvas características das bombas componentes, somando suas abcissas. Bomba 2 Bomba 1 Q H b a + b a
  • 69.
    182 Na figura dada,a curva A é a característica de uma das bombas e a 2A é a característica de duas máquinas iguais, operando em paralelo. A curva S é a característica da tubulação. A curva 2A resulta da curva A, fazendo-se AB = BC e A’B’ = B’C’. O ponto de trabalho do conjunto é P’. Cada bomba operando isoladamente, tem seu ponto de trabalho em P fornecendo a vazão Q’. Em P’ a vazão total Qt é maior que, Q, porém menor que 2Q. Nesta situação, as bombas decidem igualmente a vazão recalcada, de maneira que cada uma contribui com QA = Qt/2. É interessante notar que: - a vazão total do sistema é menor que a soma das vazões das bombas, operando isoladamente; - quando as bombas operam em paralelo, o ponto de trabalho se desloca para a direita; - se uma das bombas parar de funcionar, o ponto de trabalho será o ponto P.
  • 70.
    183 Q” = 2QA eq = A ( ) 2211 2121 QQ QQ eq + + = Q’QA Q A’ A H 2A A Q’’ P’ S B P C’ C B1 = B2 Curva característica do sistema B1 B2
  • 71.
    184 Rendimento equivalente aduas bombas operando em série. Como vimos, numa associação em série de bombas, a vazão é a mesma para cada uma das bombas, mas as alturas manométricas são diferentes. Para cada bomba temos: Bomba 1: Vazão: Q Potência: P1 Rendimento: 1 Bomba 2: Vazão: Q Potência: P1 Rendimento: 2 P1 = Q H1 e P2 = Q H2 75 1 75 2 P1 + P2 = Peq ou H1 + H2 = H1 + H2 1 2 eq eq = 1 2 (H1 + H2) 2 H1 + 1 H2 Rendimento equivalente a duas bombas operando em paralelo. Neste caso, a altura manométrica (Hm) é a mesma para cada bomba. Nesse caso: Bomba 1: Vazão: Q1 Potência: P1 Rendimento: 1
  • 72.
    185 Bomba 2: Vazão:Q2 Potência: P2 Rendimento: 2 Do mesmo modo: P1 = Q1 Hm e P2 = Q2 Hm 75 1 75 2 P1 + P2 = Peq Q1 Hm + Q2 Hm = (Q1 + Q2 ) Hm 75 1 75 2 75 eq eq = 1 2 (Q1 + Q2) 2 Q1 + 1 Q2
  • 73.
    186 Exemplo 18 Um sistemade recalque possui duas bombas idênticas instaladas em série, dispostas conforme indicada a figura. O diâmetro das tubulações é 200 mm e seus comprimentos, são os seguintes: 100 m entre R1 e B1, 100 m entre B1 e B2 e B2 e R2. A temperatura da água é de 25º C, o rendimento dos motores elétricos é de 88% e a tubulação é feita de Ferro Fundido. Conhecidas ainda as características das bombas, pede-se: a) A vazão de água recalcada; b) A altura manométrica total desenvolvida pelo sistema; c) A potência total consumida pela instalação; d) O comportamento das bombas quanto à cavitação. Obs: Despreze as perdas de carga localizadas. Características da bomba Q (l/s) 20 22,5 25 27,5 30 32,5 35 Hm (m) 87 81,5 76 69 62 54 45 (%) 80 80,5 80 78 75 71 66 NPSHr (m) 2,0 2,5 3,0 3,5 4,2 5,0 6,0
  • 74.
    187 SOLUÇÃO Curva do Sistema: D=200mm L= 300m = 0.26mm Hg 102m = 8.965E-07m 2 /s SISTEMA Q (l/s) Q (m 3 /s) Hm (m) 0.0 0.00 102.0 20.0 0.02 102.7 22.5 0.02 102.9 25.0 0.03 103.1 27.5 0.03 103.3 30.0 0.03 103.5 32.5 0.03 103.8 35.0 0.04 104.1 Para 01 Bomba: 1 BOMBA Q (l/s) Hm (m) (%) NPSHr (m) 20.0 87.0 80.00 2.00 22.5 81.5 80.50 2.50 25.0 76.0 80.00 3.00 27.5 69.0 78.00 3.50 30.0 62.0 75.00 4.20 32.5 54.0 71.00 5.00 35.0 45.0 66.00 6.00 Para 02 bombas em série: 2 BOMBAS EM SÉRIE Q (l/s) Hm 20.0 174 22.5 163 25.0 152 27.5 138 30.0 124 32.5 108 35.0 90
  • 75.
    188 Traçando Hm vs.Q e bomba vs. Q no mesmo gráfico Exemplo 18 35 45 55 65 75 85 95 105 115 125 135 145 155 165 175 18 19 20 21 22 23 24 25 26 27 28 29 30 31 32 33 34 35 36 Q ( l/ s) H ( m) 0 10 20 30 40 50 60 70 80 90 SISTEMA I BOMBA I BOMBA SÉRIE RENDIMENTO B o mb a ( %) Usando as curvas acima: a) A vazão de água recalcada s 33Qg l = b) A altura manométrica total desenvolvida pelo sistema 104 m (o dobro da altura manométrica de uma única bomba). Altura Manométrica de Cada Bomba: Hm = 52 m. c) A potência total consumida pela instalação. Potência Desenvolvida em cada bomba motorBomba m Bomba1 75 HQ P ×× × = onde Q = 33 l/s, Hm=52 m, %70Bomba = e %88motor = CV1,37 88,070,075 5233 P Bomba1 = ×× × = Potência Total: CV2,74Px2P Bomba1Total == Verificação do diâmetro, segundo Bresse, para K*=1,1 QKD *= , onde s/0,33Q l= (retirado das curvas) mm8,1990033,01,1D =×= (diâmetro comercial mais próximo ..... mm200D = ).
  • 76.
    189 Verificando a velocidade A Q V= , onde velocidadeV = ; sl0,33Qg = = 0,033m3 /s; 2 2 m031,0 4 D Área = × = . sm064,1 031,0 033,0 V == 40,2064,160,0 << (A velocidade situa-se entre os valores aceitáveis de 0,60 e 2,40 m/s) fica definido mm200D = como econômico). d ) O comportamento das bombas quanto à cavitação. Primeira Bomba ! "++#= f v s atm d h p H p NPSH , onde m32,0 pv = ; m59,7 paym = ; m0,2Hs #= ; " = m62,0hf m65,8)62,032,00,2(59,7NPSHd =++##= Exemplo 18 35 45 55 65 75 85 95 105 115 125 135 145 155 165 175 18 19 20 21 22 23 24 25 26 27 28 29 30 31 32 33 34 35 36 Q (l/s) H (m) 0.00 1.00 2.00 3.00 4.00 5.00 6.00 7.00 8.00 9.00 10.00 SISTEMA I BOMBA I BOMBA SÉRIE NPSHr NPSHr (m) m20,5NPSHr = rd NPSHNPSH $ 20,565,8 > Como o valor NPSH disponível é maior que o requerido, não haverá cavitação na primeira bomba. A segunda bomba não necessita de verificação pois a pressão na entrada desta bomba é grande o suficiente.
  • 77.
    190 Exemplo 19 Um sistemade recalque possui duas bombas B1 e B2 instaladas em paralelo e cujas características são conhecidas. A tubulação de recalque tem 1.200 m de comprimento e a de sucção 40 m, ambas com diâmetro de 250 mm. A temperatura da água sendo de 20º C, a altitude do local 600 m e a tubulação é feita de aço galvanizado. Calcular, desprezando-se as perdas localizadas, os seguintes elementos: a) Vazão de cada bomba estando as duas em funcionamento; b) A altura manométrica de trabalho; c) A potência elétrica consumida, sabendo que o rendimento dos motores é de 90%; d) O rendimento do sistema equivalente às duas bombas operando em paralelo; e) Verificar o comportamento das bombas quanto ao fenômeno de cavitação; f) Se a Bomba 2 deixasse de funcionar, o que aconteceria com o sistema. Comente sua resposta. Características das bombas BOMBA 1 Q (l/s) 20 25 30 35 40 45 50 55 Hm (m) 53 50 47 43 39 34 27,5 22 Bomba (%) 77 77,5 77 76,5 75 72,5 69 64 NPSHr (m) 0,2 0,3 0,45 0,7 1,0 1,4 1,8 2,4 BOMBA 2 Q (l/s) 20 25 30 35 40 45 50 55 Hm (m) 42 38,5 35 30,5 24,5 17,5 9,0 3 Bomba(%) 81,5 80 78 77,5 75 72 69 65 NPSHr (m) 0,3 0,5 0,7 0,9 1,1 1,4 1,8 2,2
  • 78.
    191 SOLUÇÃO Curva do Sistema: SISTEMA Q(l/s) Q (m3/s) Hm (m) 0 0.00 30.00 20 0.02 30.79 25 0.03 31.19 30 0.03 31.67 35 0.04 32.22 40 0.04 32.85 45 0.05 33.55 50 0.05 34.32 55 0.06 35.17 60 0.06 36.09 65 0.07 37.08 70 0.07 38.15 75 0.08 39.29 80 0.08 40.50 42 0.04 0.10 26 0.03 0.04 45 0.05 0.11 BOMBA I Q (l/s) Hm (m) (%) NPSHr (m) 20 53.0 77.0 0.2 25 50.0 77.5 0.3 30 47.0 77.0 0.5 35 43.0 76.5 0.7 40 39.0 75.0 1.0 45 34.0 72.5 1.4 50 27.5 69.0 1.8 55 22.0 64.0 2.4
  • 79.
    192 BOMBA II Q (l/s)Hm (m) (%) NPSHr (m) 20 42.0 81.5 0.3 25 38.5 80.0 0.5 30 35.0 78.0 0.7 35 30.5 77.5 0.9 40 24.5 75.0 1.1 45 17.5 72.0 1.4 50 9.0 69.0 1.8 55 65.0 2.2 BOMBAS EM PARALELO Q (l/s) Hm 100.0 20 91.9 25 83.6 30 74.0 35 61.6 40 48.2 45 33.6 50 18.1 55 Traçando Hm vs. Q e bomba vs. Q no mesmo gráfico:
  • 80.
    193 EXEMPLO 19 0 5 10 15 20 25 30 35 40 45 50 55 60 65 70 75 80 85 90 0 510 15 20 25 30 35 40 45 50 55 60 65 70 75 80 85 90 95 100 105 110 Q (l/s) Hm (m) 0 5 10 15 20 25 30 35 40 45 50 55 60 65 70 75 80 85 90 (%) SISTEMA I BOMBA I BOMBA II BOMBA I+II RENDIMENTO I REDIMENTO II a) Vazão de cada bomba obtido do gráfico anterior vazão da bomba I s/42QI l= vazão da bomba II s/26QII l= b) altura manométrica desenvolvida em cada bomba Hm = 38 m (obtido do gráfico) c) Potência Potência elétrica consumida na bomba I Do gráfico da página anterior %73BombaI = Também sabemos (dado de entrada) que: %90motor = Portanto CV4,32 90,073,075 3842 PI = ×× × = Potência elétrica consumida na bomba II
  • 81.
    194 Do gráfico dapágina anterior %5,77BombaII = Também sabemos (dado de entrada) que: %90motor = CV9,18 90,0775,075 3826 PII = ×× × = Potência Total consumida: CV3,51PPP IIITotal =+= d) o rendimento do sistema equivalente às duas bombas operando em paralelo ( ) IIIIII IIIIII eq QQ QQ ×+× +×× = , onde s/42QI l= ; %73I = ; s/26QII l= ; %5,77II = ( ) %75 2673,042775,0 2642775,073,0 eq = ×+× +×× = e) O NPSH disponível, verificando-se o comportamento das bombas quanto ao fenômeno da cavitação. e.1) bomba I ! "++#= f v s atm d h p H p NPSH , onde m20,0 pv = ; m62,9 paym = ; m0,4Hs = ; " = m1,0hf m32,5)10,020,00,4(62,9NPSHd =++#=
  • 82.
    195 EXEMPLO 19 0 5 10 15 20 25 30 35 40 45 50 55 60 65 70 75 80 85 90 0 510 15 20 25 30 35 40 45 50 55 60 65 70 75 80 85 90 95 100 105 110 Q (l/s) Hm (m) -5.0 -4.5 -4.0 -3.5 -3.0 -2.5 -2.0 -1.5 -1.0 -0.5 0.0 0.5 1.0 1.5 2.0 2.5 3.0 3.5 4.0 NPSHr (m) SISTEMA I BOMBA I BOMBA II BOMBA I+II NPSHr Bomba I NPSHr Bomba II m20,1NPSHr = rd NPSHNPSH $ 20,132,5 > Afirmamos que a bomba I, não cavitará Bomba 2 ! "++#= f v s atm d h p H p NPSH , onde m20,0 pv = ; m62,9 paym = ; m0,4Hs = ; " = m1,0hf m38,5)04,020,00,4(62,9NPSHd =++#= m35,0NPSHr = rd NPSHNPSH $ ,A bomba 2 também não cavitará.
  • 83.
    196 f) Quais seriamas novas características do sistema se a bomba 2 deixasse de funcionar. Comente. EXEMPLO 19 Apenas a Bomba I Funcionando 0 5 10 15 20 25 30 35 40 45 50 55 60 65 70 75 80 85 90 0 5 10 15 20 25 30 35 40 45 50 55 60 65 70 75 80 85 90 95 10 0 105 110 Q (l/s) Hm (m) 0 5 10 15 20 25 30 35 40 45 50 55 60 65 70 75 80 85 90 (%) SISTEMA BOMBA I BOMBA II BOMBA I+II RENDIMENTOI REDIMENTOII f.1) vazão da bomba I s/45QI l= f.2) altura manométrica desenvolvida m34Hm = f.3) rendimento %72I = f.4) potência elétricas consumida na Bomba I: CV5,31 90,072,075 3445 PI = ×× × = f.4) O NPSH disponível, verificando-se o comportamento das bombas quanto ao fenômeno da cavitação. Como vimos: m32,5NPSHd = mNPSHr 40,1= rd NPSHNPSH $ 40,131,5 > Para esta situação, onde apenas a bomba I funcionará, não haverá problemas com cavitação
  • 84.
    197 Exercício Proposto 14 Umaestação elevatória localizada na Praia do Futuro será usada para bombear no mínimo 300 l/s. Sabendo que a diferença entre os níveis de água nos reservatórios de entrada e saída é 15 m, a tubulação é de ferro fundido com 1.500 m de comprimento, T = 10º C e D = 40 cm, selecione, dentre as bombas das Figuras 9 e 10, duas bombas iguais funcionando em paralelo para este sistema. Após selecionar a bomba mais adequada, determine a vazão total , a vazão em cada bomba, a altura manométrica, o diâmetro do rotor de cada bomba, a eficiência das bombas, a potência consumida em cada bomba e a potência total consumida pelo sistema. Solução: D= 400mm L= 1500m = 0.26mm HG= 15m = 1.31E-06m 2 /s SISTEMA Q (l/s) Q (m 3 /s) Hm (m) 0 0.00 15.00 25 0.03 15.17 50 0.05 15.62 75 0.08 16.35 100 0.10 17.35 125 0.13 18.62 150 0.15 20.16 175 0.18 21.96 200 0.20 24.04 225 0.23 26.39 250 0.25 29.00 275 0.28 31.89 300 0.30 35.04 325 0.33 38.47 Para a vazão de cada bomba que é a metade da vazão requerida (Q = 150 l/s), o sistema requer uma altura manométrica mínima de 20,16 m (Ver tabela acima).
  • 85.
    198 Vamos então pré-selecionara bomba a através do uso da tabela 11, a que melhor se ajusta ao nosso caso. Verificamos que as opções de bombas que mais se aproximam das características requeridas são as bombas III e IV.
  • 86.
    199 BOMBA III 0 10 20 30 40 50 60 0 2040 60 80 100 120 160 200 Vazão (L/s) Hm(m) 220 240 260 280 300 Tubulação 30% 40% 50% 50% 60% 60% Verificamos que o horizonte de alcance da Bomba III está muito distante das especificações da tubulação.
  • 87.
    200 Analisando a bombaIV: BOMBA IV 0 10 20 30 40 50 60 0 25 50 75 100 125 150 175 200 225 250 Vazão (L/s) Hm(m) 220 240 260 280 300 "SISTEMA" 40% 50% 55% 62% 60% 62% e usando um diâmetro de rotor = 220 mm: D= 400mm L= 1500m = 0.26mm HG= 15m = 1.31E-06m 2 /s SISTEMA BOMBA IV 220 mm Q (l/s) Q (m 3 /s) Hm (m) Q (l/s) Hm (m) 0 0.00 15.00 25 0.03 15.17 25 28.8 50 0.05 15.62 50 28.5 75 0.08 16.35 75 28.0 100 0.10 17.35 100 27.2 125 0.13 18.62 125 25.8 150 0.15 20.16 150 24.0 175 0.18 21.96 175 21.0 200 0.20 24.04 225 0.23 26.39 250 0.25 29.00
  • 88.
    201 275 0.28 31.89 3000.30 35.04 325 0.33 38.47 SISTEMA EM PARALELO Q (l/s) Hm (m) 50 28.8 100 28.5 150 28.0 200 27.2 250 25.8 300 24.0 350 21.0 EXERCÍCIO PROPOSTO 14 10 11 12 13 14 15 16 17 18 19 20 21 22 23 24 25 26 27 28 29 30 10 30 50 70 90 110 130 150 170 190 210 230 250 270 290 Q (l/s) Hm (m) BOMBA IV 220 mm SISTEMA BOMBAS EM PARALELO Verificamos que o sistema funcionará com Q = 225 l/s e Hm = 26,4 m, o que em termos de vazão é inaceitável.
  • 89.
    202 Analisando a bombaIV funcionando um diâmetro de rotor = 260 mm: BOMBA IV 0 10 20 30 40 50 60 0 25 50 75 100 125 150 175 200 225 250 Vazão (L/s) Hm(m) 220 240 260 280 300 "SISTEMA" 40% 50% 55% 62% 60% 62% D= 400mm L= 1500m = 0.26mm HG= 15m = 1.31E-06m 2 /s SISTEMA BOMBA IV 260 mm Q (l/s) Q (m 3 /s) Hm (m) Q (l/s) Hm (m) 0 0.00 15.00 25 0.03 15.17 25 39.8 50 0.05 15.62 50 39.6 75 0.08 16.35 75 39.0 100 0.10 17.35 100 38.5 125 0.13 18.62 125 37.5 150 0.15 20.16 150 36.0 175 0.18 21.96 175 34.0 200 0.20 24.04 200 30.5 225 0.23 26.39 225 26.2 250 0.25 29.00 275 0.28 31.89 300 0.30 35.04 325 0.33 38.47
  • 90.
    203 SISTEMA EM PARALELO Q(l/s) Hm (m) 50 39.8 100 39.6 150 39.0 200 38.5 250 37.5 300 36.0 350 34.0 EXERCÍCIO PROPOSTO 14 10 12 14 16 18 20 22 24 26 28 30 32 34 36 38 40 42 44 46 48 50 10 30 50 70 90 110 130 150 170 190 210 230 250 270 290 310 330 350 370 390 Q (l/s) Hm (m) BOMBA IV 260 mm SISTEMA BOMBAS EM PARALELO Verificamos que o sistema funcionará com Q = 305 l/s e Hm = 36 m. Assim a bomba escolhida é a IV funcionando um diâmetro de rotor = 260 mm.
  • 91.
    204 Rendimento em cadabomba. Vazão em cada bomba: 152,5 l/s. BOMBA IV 0 10 20 30 40 50 60 0 25 50 75 100 125 150 175 200 225 250 Vazão (L/s) Hm(m) 220 240 260 280 300 "SISTEMA" 40% 50% 55% 62% 60% 62% Assim, verificamos que o rendimento de cada bomba é de 62%. A potência elétricas consumida em cada bomba: CV118 62,075 5,15236 P = × × = Assim a Potência total consumida no sistema é 2 P = 236 CV