RUY OHTAKE
Grandes Arquitetos da Década de 80:
BIOGRAFIA
Filho primogênito da artista plástica, e
grande nome do abstracionismo informal no
Brasil, Tomie Ohtake e do agrônomo Alberto
Ohtake, é formado arquiteto e Urbanista
pela FAU-USP.
TOMIE OHTAKE
ESCOLHA DA PROFISSÃO
Fez uma arquitetura mais lírica e leve, que expressa o prazer pelas
curvas. Já foi considerado “o mais carioca dos arquitetos paulistas”.
Decidiu estudar arquitetura, assim como seu irmão, por influência do
meio em que vivia, repleto de arte devido à sua mãe.
INFLUÊNCIAS NA UNIVERSIDADE
De acordo com ele, os professores que mais o imfluenciaram foram:
Vilanova Artigas, devido à crítica social na arquitetura;
Lourival Gomes Machado, crítico de arte;
Flávio Mota, professor de história da arte.
Ohtake ainda ressalta, além da qualidade dos professores, a importância
do ambiente universitário, com muita discussão dentro e fora da sala de
aula e do diretório acadêmico.
CONTEXTO
Ohtake estudo e formou-se arquiteto em um período de efervescência na
arquitetura brasileira, a mudança de capital. Sempre que podia, quando
estudante, visitava o escritório de Oscar Niemeyer, em uma dessas visitas
o conheceu pessoalmente e cada vez mais foi influenciado por seu
trabalho.
O TRABALHO DO ARQUITETO
Na época, o arquiteto era um profissional desvalorizado, a profissão ainda se
firmava no país. Ao formar-se, começou a trabalhar meio período no Centro
de Pesquisas de Estudos de Urbanismo da FAU-USP e o tempo restante em
seu escritório próprio. Seu primeiro projeto foi a garagem para a casa de seu
tio.
Em seu período de trabalho viveu a ditadura militar e a crise econômica que
o Brasil passava, mesmo assim fez muitas de suas obras mais significativas em
meio à crise.
RESIDÊNCIA ROSA OKUBO
Projetou a residência com 2 anos de formado, em 1964. A residência
ocupa todo o limite permitido do terreno de esquina de 345m². Foi
projetada em conjunto com Adolfo Sato.
RESIDÊNCIA ROSA OKUBO
Procurou-se conservar o material e simplificar a mão de obra.
A vedação é toda feita com blocos de concreto ao natural, com exceção dos
dormitórios onde foram utilizadas placas de madeira parafusadas.
“Influência de Carlos Milan, que insistia muito “na verdade do material, na
essência do material”.”
RESIDÊNCIA ROSA OKUBO
RESIDÊNCIA ROSA OKUBO
RESIDÊNCIA ROSA OKUBO
RESIDÊNCIA ROSA OKUBO
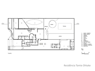
Residência Tomie Ohtake
Residência Tomie Ohtake
• Casa x atelier
• Casa da mãe
• Pequena praça
• Bloco único
• Predomínio do concreto armado, da parede aos móveis
• prêmio do IAB em 1971
Local: São Paulo
Data do Projeto: 1968/1982/1996
Data da Construção: 1970/1985/1997
Área do Terreno: 1.200 m2
Área de Construção: 736 m²
Residência Tomie Ohtake
Residência Tomie Ohtake
Residência Tomie Ohtake
Residência Tomie Ohtake
Residência Tomie Ohtake
Residência Tomie Ohtake
Residência Tomie Ohtake
Residência Tomie Ohtake
Residência Tomie Ohtake
Residência Nadir Zacarias
Residência Nadir Zacarias
• Definição pelo terreno
• Interno para o externo
• Curvas x rigidez
• Bloco único
• Predomínio do concreto armado, da parede aos móveis
• Prêmio Carlos Millan - IAB em 1971
Local: São Paulo
Data do Projeto: 1970
Data da Construção: 1972
Área do Terreno: 400 m²
Área de Construção: 321 m²
Arquitetura: Ruy Ohtake,
Ana Regina D’Andreatta
Residência Nadir Zacarias
Residência Nadir Zacarias
Residência Nadir Zacarias
Residência Nadir Zacarias
Residência Nadir Zacarias
Residência Nadir Zacarias
Residência Nadir Zacarias
Edifício Hyde Park
• Curvado para destaque
• Respiro com disposição diferenciada
Local: São Paulo
Data do Projeto: 1972
Data da Construção: 1975
Área Construída: 10.490 m²
Área do Terreno: 3.420 m²
Arquitetura: Ruy Ohtake,
Michael Lieders
Edifício Hyde Park
Edifício Hyde Park
Edifício Hyde Park
Edifício Hyde Park
Edifício Hyde Park
Banespa - Agência Goiânia
• Diversificação da paisagem urbana
Local: Goiânia/GO
Data do Projeto: 1977
Data da Construção: 1979
Área do Terreno: 835 m²
Área de Construção: 2.450 m²
Arquitetura: Ruy Ohtake,
José Maria Whitaker
Banespa - Agência Goiânia
Banespa - Agência Goiânia
Banespa - Agência Goiânia
Banespa - Agência Goiânia
Banespa - Agência Goiânia
Banespa - Agência Goiânia
Embaixada do Brasil
• Contraponto da fachada em curva reforçada pela verticalidade do
caixilho vermelho com uma curva em sentido contrário, amarelo-
gema.
Local: Tóquio
Data do Projeto: 1981
Data da Construção: 1982
Área do Terreno: 1.142 m²
Área da Construção: 2.400 m²
Arquitetura: Ruy Ohtake
Embaixada do Brasil
Embaixada do Brasil
Embaixada do Brasil
Embaixada do Brasil
Embaixada do Brasil
Embaixada do Brasil
Embaixada do Brasil
Residência do Embaixador do Brasil
• Arquitetura residencial brasileira em Tóquio
• Ala térrea, comemorações
• Ala superior, resindência
• Ala inferior, serviços
Local: Tóquio
Data do Projeto: 1981
Data da Construção: 1983
Área do Terreno: 1.778 m²
Área de Construção: 1.465 m²
Arquitetura: Ruy Ohtake
Residência do Embaixador do Brasil
Residência do Embaixador do Brasil
Residência do Embaixador do Brasil
Residência do Embaixador do Brasil
Residência do Embaixador do Brasil
Residência do Embaixador do Brasil

Ruy Ohtake