Mosteiro da Luz
                            André M. Lima
                Daniel Felipe Outa Yoshida
                           Denise Jankovic
                    Leonardo Katsuzo Oda
              Luciana Molinari Monteforte
                            Raul Lima Silva

         Profª Maria Lúcia Bressan Pinheiro
‘
O Mosteiro
• O primeiro registro da existência da Igreja de N. Sra. da Luz (por volta de
  1579, segundo cartas do Padre Anchieta)
• De iniciativa de Frei Galvão e Irmã Helena Maria do Sacramento, o
  Mosteiro foi construído como ampliação da Igreja da Luz.
• Em 1774 Frei Galvão envia à Câmara um ofício para a criação do
  Recolhimento da Luz, no sítio da igreja. São iniciadas, assim, as obras de
  ampliação da igreja e construção do convento.
• Frei Galvão morreu em 1822, antes da conclusão da obra. No ano de 1788
  o conjunto já apresentava sua feições atuais.
Mapa da Cidade de São Paulo e
seus Subúrbios
C. A. Bresser - s/d
Fonte: São Paulo antigo- Plantas da
Cidade de São Paulo
Comissão de IV centenário da
cidade de São Paulo
Frei Galvão (1739-1822)
• Devoto da Ordem Franciscana
• Frei Galvão foi o idealizador do
  desenho e arquitetura do
  mosteiro.
• Foi mestre de obras e taipeiro e,
  através de seu projeto, tentou
  proporcionar um ambiente mais
  salubre para as religiosas
  confinadas.
• Morre em 1822.
Aspectos Construtivos
• As paredes mestras foram executadas com a
  técnica da taipa de pilão, com a espessura de
  1m para suportar segundo pavimento.
• As paredes internas, sem função estrutural
  foram feitas com a técnica da taipa de mão
  (pau-a-pique).
• As portas e janelas são estreitas.
• São construções sem ornatos e de paredes
  retas em virtude das limitações da taipa.
Técnica construtiva: Taipa de Pilão
Alterações na obra
• 1774-1788 Obras de ampliação do edifício
• 1788 Inauguração dos novos claustros.
• 1788-1802 Acesso lateral construído passa a ser o principal -
  voltado para a avenida Tiradentes.
• 1827-1835 Alteração do novo frontispício - frontão inaugural
  eliminado para receber torre de sinos.
• 1835-1868 Reformulação da antiga entrada principal (lateral) -
  introduzem-se contrafortes e pilastras para reforçar um desenho
  barroco no edifício.
• 1868-1897 O muro de alinhamento recebe um pórtico
  neoclássico.
• 1908 Construção de nova ala em estilo neoclássico.
• 1929 Alteração do telhado e fachada da nova ala.
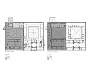
Croquis e Plantas
Mudanças na tipologia do edifício


Fachada R. Jorge Miranda- entrada principal até 1801




                                                                   Fachada Av. Tiradentes- 1802 – Acesso Lateral




Fachada Av. Tiradentes - 1835- 1868 – Elementos barrocos e torre
de sino
Fachada Av. Tiradentes- 1908 – Construção da nova ala em alvenaria




Fachada Av. Tiradentes- 1928 até os dias de hoje – Janelas com características coloniais
Vista do Pátio Interno
Fotos
1908
                                    1835




                          1788




Vista aérea do mosteiro
Fachada da Av. Tiradentes – Fachada da Rua Jorge Miranda
Vista do pátio interno
Janelas e conversadeira.
Taipa de pilão

  Taipa de sopapo              Adobe




Exemplo das técnicas e materiais empregados na construção do mosteiro
Desenho existente na
parede do Mosteiro da Luz,
de autoria de Frei Galvão.
Mosteiro da luz

Mosteiro da luz

  • 1.
    Mosteiro da Luz André M. Lima Daniel Felipe Outa Yoshida Denise Jankovic Leonardo Katsuzo Oda Luciana Molinari Monteforte Raul Lima Silva Profª Maria Lúcia Bressan Pinheiro
  • 2.
  • 3.
    O Mosteiro • Oprimeiro registro da existência da Igreja de N. Sra. da Luz (por volta de 1579, segundo cartas do Padre Anchieta) • De iniciativa de Frei Galvão e Irmã Helena Maria do Sacramento, o Mosteiro foi construído como ampliação da Igreja da Luz. • Em 1774 Frei Galvão envia à Câmara um ofício para a criação do Recolhimento da Luz, no sítio da igreja. São iniciadas, assim, as obras de ampliação da igreja e construção do convento. • Frei Galvão morreu em 1822, antes da conclusão da obra. No ano de 1788 o conjunto já apresentava sua feições atuais.
  • 4.
    Mapa da Cidadede São Paulo e seus Subúrbios C. A. Bresser - s/d Fonte: São Paulo antigo- Plantas da Cidade de São Paulo Comissão de IV centenário da cidade de São Paulo
  • 5.
    Frei Galvão (1739-1822) •Devoto da Ordem Franciscana • Frei Galvão foi o idealizador do desenho e arquitetura do mosteiro. • Foi mestre de obras e taipeiro e, através de seu projeto, tentou proporcionar um ambiente mais salubre para as religiosas confinadas. • Morre em 1822.
  • 6.
    Aspectos Construtivos • Asparedes mestras foram executadas com a técnica da taipa de pilão, com a espessura de 1m para suportar segundo pavimento. • As paredes internas, sem função estrutural foram feitas com a técnica da taipa de mão (pau-a-pique). • As portas e janelas são estreitas. • São construções sem ornatos e de paredes retas em virtude das limitações da taipa.
  • 7.
  • 8.
    Alterações na obra •1774-1788 Obras de ampliação do edifício • 1788 Inauguração dos novos claustros. • 1788-1802 Acesso lateral construído passa a ser o principal - voltado para a avenida Tiradentes. • 1827-1835 Alteração do novo frontispício - frontão inaugural eliminado para receber torre de sinos. • 1835-1868 Reformulação da antiga entrada principal (lateral) - introduzem-se contrafortes e pilastras para reforçar um desenho barroco no edifício. • 1868-1897 O muro de alinhamento recebe um pórtico neoclássico. • 1908 Construção de nova ala em estilo neoclássico. • 1929 Alteração do telhado e fachada da nova ala.
  • 9.
  • 11.
    Mudanças na tipologiado edifício Fachada R. Jorge Miranda- entrada principal até 1801 Fachada Av. Tiradentes- 1802 – Acesso Lateral Fachada Av. Tiradentes - 1835- 1868 – Elementos barrocos e torre de sino
  • 12.
    Fachada Av. Tiradentes-1908 – Construção da nova ala em alvenaria Fachada Av. Tiradentes- 1928 até os dias de hoje – Janelas com características coloniais
  • 13.
  • 15.
  • 16.
    1908 1835 1788 Vista aérea do mosteiro
  • 17.
    Fachada da Av.Tiradentes – Fachada da Rua Jorge Miranda
  • 18.
  • 19.
  • 20.
    Taipa de pilão Taipa de sopapo Adobe Exemplo das técnicas e materiais empregados na construção do mosteiro
  • 21.
    Desenho existente na parededo Mosteiro da Luz, de autoria de Frei Galvão.