Sala São Paulo
BREVE HISTÓRICO
1 - Contexto Urbano 
A antiga estação ferroviária 
Júlio Prestes após a 
restauração, dá lugar à Sala 
São Paulo, que faz parte do 
Centro Cultural Júlio Prestes. O 
edifício fica ao lado da 
Pinacoteca, e próximo à 
Estação da Luz.
2 - De Estação de Trem à Sala de Concertos 
- A Estação Júlio Prestes foi construída entre 1925 e 1938 
para ser a sede e ponto de partida para a Estrada de Ferro 
Sorocabana, uma empresa criada pelos barões do café, para 
transportar o produto até ao porto de Santos. O nome Julio 
Prestes é uma homenagem ao ex governador do Estado de 
São Paulo. 
- O projeto original da Estação Inicial Sorocabana é do 
Escritório Técnico Samuel e Christiano das Neves. Christiano 
baseou seu projeto em um estilo eclético, descrito como 
neoclássico Luis XVI se contrapondo com o barroco que 
predominava na época.
3 - Função Original 
A Estação Inicial Sorocabana foi inicialmente apenas uma 
estação de trem, onde encontramos grandes e monumentais 
salões que faziam a separação da classe assalariada e da 
elite paulistana.
EVOLUÇÃO
1 – Mudanças de Uso 
- O edifício monumental fica parcialmente 
inacabado devido as crises financeiras 
mundiais. 
- A Estação Júlio Prestes fica completamente 
fora do contexto histórico, visto que foi 
iniciada na década de 20 e finalizada em 
1938, quando o movimento moderno já 
acontecia no país. 
- Em 1992, temos os primeiros restauros: 
vitrais, torre e concourse.
3 – Mudanças de Proprietários 
Em 1995 há um interesse da Sorocabana 
em privatizar a ferrovia. O atual 
governador Mario Covas pede que a 
Estação Júlio Prestes fique de fora, 
tornando-a então um complexo cultural do 
governo de São Paulo.
RESTAURO
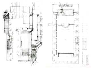
1 - Ficha Técnica 
Projeto da Sala São Paulo, abril de 1997 a 
julho de 1999. 
Coordenação e gerenciamento: Acunha 
Sole Engenharia 
Arquitetura, restauro, interiores e 
paisagismo: Dupré Arquitetura 
Acústica: Artec 
Área a restaurar e reformar: 26.630m² 
Área total de intervenção: 58.134m²
2 – Proposta de Intervenção 
A proposta de Nelson Dupré consistia numa intervenção que destacasse o que era 
antigo e novo. Para isso, usa diferentes materiais que se destacam da edificação 
como o aço, vidro, concreto e madeira clara, todos desenhados de forma a 
evidenciar essa diferença. 
“A opção por um desenho com linhas retas é uma resposta à arquitetura da estação, 
repleta de elementos curvos.” 
A Sala São Paulo deveria ter dois usos distintos: um seria a sede da OSESP com a 
necessidade de espaços administrativos e um local para apresentações culturais, e 
o outro como estação ferroviária. 
No programa proposto para ser executado o principal componente era a instalação 
de uma sala para concertos que seria onde o Grande Hall no antigo projeto deveria 
ter sido construído, mas que foi cortado por causa da falta de verbas. Então quando 
se iniciou a reforma o que se encontrava naquele espaço era um jardim mal cuidado 
e pouco utilizado, cujo paisagismo era, basicamente, o plantio de palmeiras 
imperiais. Os desafios eram muitos: desde construir uma sala de concertos tão 
próxima a uma estação de trem, tendo que lidar com fatores como ruídos e 
vibrações, até o reforço da estrutura para que pudesse suportar o peso dos novos 
equipamentos. As intervenções superaram esses desafios e transformou aquele 
espaço em uma sala de apresentações que pode ser considerada o melhor auditório 
sinfônico da América Latina.
ÁREAS QUE SOFRERAM 
INTERVENÇÕES 
RESTAURADORAS
Restauro: FACHADA PRINCIPAL 
A fachada principal, originalmente quase toda em 
massa raspada, apresentava algumas partes em 
argamassa. Foi feita uma limpeza utilizando jatos 
de água morna pressurizada e detergente alcalino. 
Algumas partes foram recompostas, também com 
massa raspada. Finalmente, aplicou-se estuque e 
um tratamento com material hidro-repelente para 
proteção contra os agentes atmosféricos. O 
letreiro da fachada principal com o nome do 
edifício foi recuperado.
Restauro: demais fachadas 
As fachadas laterais e posterior também 
foram lavadas com jatos de água morna e 
detergente alcalino e depois revestidas 
com plasticote, após a reconstituição dos 
elementos faltantes. A cobertura também 
foi recuperada, através da substituição de 
elementos danificados e faltantes.
Restauro: Fachada do Grande Hall 
Após a montagem dos andaimes, procedeu-se à 
limpezqa das fachadas internas do Grande Hall. O 
acabamento original em massa raspada 
apresentava-se em bom estado de conservação, 
necessitando apenas de lavagem com jatos de 
àgua e detergente alcalino; as partes soltas foram 
coladas com argamassa similar à original. 
Nenhum tratamento ou proteção extra foi previsto, 
já que estas paredes não mais terão contato com 
o exterior.
Restauro: pisos 
O piso de mosaico original estava bastante danificado, provavelmente 
devido à utilização rotineira de produtos químicos em sua limpeza. 
Uma vez que não se conseguiu nenhuma empresa para devolvê-los 
à sua condição original, decidiu-se pela sua preservação no estado 
em que se encontravam, com a utilização de resina acrílica 
transparente, altamente resistente ao desgaste. Os pisos em granilite 
foram recompostos com material similar ao original em cor, 
composição e granulometria, e depois polidos com àgua e lixa fina. 
Aplicou-se ainda mais resina acrílica com acabamento metalizado e 
transparente. As partes de mármore, rodapés e soleiras, também 
foram tratas com resina acrílica. Os pisos de madeira não foram 
utilizados por estarem muito danificados. Novos pisos, feitos de 
acordo com o desenho original, receberam resina acrilica como 
tratamento final.
Restauro: elementos em gesso 
Sancas, molduras e todos os 
acabamentos em gesso que se 
apresentavam danificados foram 
substituídos por elementos novos, 
também em gesso, fabricados de acordo 
com os parâmetros originais. 
As rosetas dos pontos de iluminação 
também foram refeitas onde necessário.
Restauro: vitrais e clarabóias 
Todos os vitrais e clarabóias existentes 
foram retirados para limpeza, eliminação 
de pontos de ferrugem e tratamento da 
estrutura metálica.
Restauro: alvenarias internas 
As alvenarias internas foram alvo de 
tratamento especial, constando de 
limpeza com jatos de água morna e 
detergente alcalino, aplicaão de estuque 
para substituição de pequenas partes 
faltantes e reparos onde necessário, além 
de um trabalho de pintura.
Restauro: caixilhos de ferro 
Todos os caixilhos metálicos foram limpos, lixados, 
pintados com uma camada protetora antioxidante 
e esmalte. As ferragens e dobradiças foram 
limpas e recolocadas nos seus lugares, pois 
estavam em bom estado de conservação. Os 
caixilhos metálicos posteriores, que precisaram 
ser refeitos por razões acústicas, seguiram o 
desenho original, contando agora porém como 
estrutura e pano de vidro duplos.
Restauro: portas de madeira 
Durante os trabalhos de prospecção percebeu-se que as 
portas, batentes e demais elementos de madeira tinham sido 
originalmente preparados para receberem pintura. Com a 
retirada das portas e a remoção de toda a pintura, as portas 
revelaram-se de cedro. Os arquitetos optaram por manter 
seu acabamento em madeira natural, após aplicação de uma 
camada protetora de verniz. As portas que precisaram ser 
refeitas seguiram os parametros de desenho das portas 
originais. As dobradiças em bom estado foram restauradas; 
as que precisaram ser substituídas optou-se por 
acabamento oxidado. As fechaduras tiveram seus miolos 
substituídos por novos. Novas maçanetas e espelhos 
identicos aos originais.
Restauro: elevadores 
Cada um dos dois elevadores originais de 
passageiros situados junto à escada 
posterior haviam sido feitos em datas e por 
fabricantes diferentes. Os equipamentos 
foram restaurados mantendo-se a caixa 
conforme o original, porém adequando as 
máquinas às características de um 
equipamento de tecnologia e segurança 
modernas.
Obra Nova: Grande Hall 
A sala de concertos foi projetada para ficar 
onde antes era o jardim de inverno do 
edifício, (seria o saguão de espera no projeto 
original). 
A futura sala de concertos deveria receber 
cobertura e ter seu piso rebaixado, ganhando 
fechamentos laterais e condicionamento 
climático e acústico. Na etapa inicial foram 
removidas as palmeiras imperiais, tendo sido 
realizadas sondagem do solo e escavação 
do piso.
Obra Nova: Grande Hall, reforço de 
fundações 
A cobertura, os recursos cênicos, os equipamentos técnicos 
e os motores do forro móvel iriam acrescentar uma carga 
extra de 1000 toneladas nas colunas circundantes do 
Grande Hall. Embora os pilares suportassem as cargas, o 
mesmo não aconteceria com as fundações, que precisaram 
ser reforçadas. Nos locais de fácil acesso optou-se por 
estacas de raiz, perfuradas com ar comprimido. Nos cantos 
optou-se por estacas mega metálicas ou de concreto. Foi 
necessário ainda construir uma parede de diafragma entre o 
prédio da Estação e a garagem a ser edificada na parte 
posterior, devido à permeabilidade do solo e existência de 
lençol freático.
Obra nova: piso da platéia 
Concebida de modo a estar acusticamente isolada de 
ruídos externos, sobretudo os da linha férrea, todas as 
partes novas da sala de concertos, incluindo platéia, 
palco e balcões, foram isoladas da estrutura principal, 
constituindo uma estrutura flutuante independente. As 
lajes e os balcões foram apoiados sobre elementos 
acústicos de neoprene. O piso da plateia principal, de 
15cm, é apoiado no contrapiso com calços de 
neoprene, sobre base de madeira compensada 
padrão naval, por sua vez apoiada na laje flutuante.
Obra nova: piso do palco e elevadores 
Após os trabalhos de escavação e construção 
da cortina de contenção, foi montada a 
estrutura metálica de suporte do palco que, por 
sua vez deveria ser dotado de recursos de 
iluminação, elevadores para uso do piano e do 
coro. Este permite a retirada dos instrumentos 
quando necessário alguma manutenção.
Obra Nova: balcões laterais 
Os balcões da lateral do mezanino funcionam 
como estruturas independentes, apoiadas 
em calços de neoprene sobre uma estrutura 
de concreto de apoio. Os fechamentos foram 
feitos em madeira com alto nível de 
isolamento acústico. 
Já os balcões das laterais do 1ºpavimento se 
apoiam em vigas em balanço. Para o 
fechamento, foi feito o mesmo que as do 
mezanino.
Obra Nova: balcão posterior 
Para ela, também foi necessária a 
execução de novos pilares de sustentação 
das lajes. Os painéis laterais pré-moldados 
de concreto também foram 
revestidos com madeira com alto 
desempenho em termos acústicos.
Obra nova: cobertura do Grande Hall 
O projeto original do arquiteto Christiano das Neves previa sobre o 
Grande Hall uma cobertura em estrutura metálica parcialmente 
envidraçada de maneira a iluminar naturalmente o saguão. Para a 
nova sala de concertos foi removida a cobertura provisória, e 
chumbados na platibanda os apoios para a nova cobertura, nos 
quais foi fixada a nova estrutura de articulação, posteriormente foram 
fixadas também vigas treliçadas. 
Ainda tivemos a execução do piso técnico, onde temos os motores 
do teto móvel, e é isolado acusticamente dos ruídos externos. 
A cobertura isotérmica manteve o desenho original, com telhas 
isotérmicas de aço pré-pintadas e montadas com espuma de 
poliuretano expandido, para cobrir sua parte plana superior, e placas 
policarbonato alveolar, também isotermico, para as partes laterais e 
as quinas curvas.
176 a 179
Obra Nova: mezanino metálico 
Para dar acesso ao primeiro nivel de balcões, 
na altura do mezanino, foram executadas 
passarelas e escadas em aço com acabamento 
do piso de madeira, visualmente soltas da 
edificação.
Fotos 180
Obra Nova: forro acústico móvel 
O forro móvel permite que diversos eventos 
acusticos aconteçam no local, dependendo 
da necessidade. São 25 grandes painéis 
modulares com 7,5 toneladas cada. A cada 3 
painéis temos um elevador e 16 cabos de 
aço que se prendem nas vigas da cobertura. 
Os painéis possuem altura minima de 4 
metros e máxima de 22 metros.
Fotos 181
Obra Nova: pisos flutuantes e painéis 
de fechamento 
Para garantir o bom funcionamento 
acústico, optou-se pela colocação de piso 
flutuante, que fica em cima de discos de 
neoprene de 9cm de diâmetro e 5cm de 
espessura. 
Já os fechamentos foram realizados em 
painéis almofadados moduladores, para 
isolamento do som
182 e 183
Obra Nova: Antecâmaras 
Foram previstas câmaras de acesso à 
sala de concertos no pavimento terreo, 
dotadas de isolamento acustico nas 
portas, paredes e forros.
184
Obra nova: Entre o concourse e o foyer 
Quiseram manter a visão do salão para a 
plataforma, deixando assim caixilhos 
envidraçados acústicos, onde há uma 
barragem total do som, mas ainda é 
possível manter o contato empírico com o 
trem.
186
Obra Nova: salas de controle 
Para o controle dos forros, palco e do coro 
são utilizados grandes painéis, sendo 
considerado um edificio “inteligente”
Obra nova: ar condicionado 
Todos os equipamentos de resfriamento 
do edificio foram instalados no piso 
técnico e na cobertura.
188
Obra nova: construção da garagem 
A garagem foi executada com elementos pré 
moldados de concreto, em dois subsolos e 
com previsão de vagas para 600 pessoas. 
No seu segundo subsolo ainda se encontra 
as casas de máquinas de ar condicionado, 
geradores, central de energia e outras 
utilidades. Sobre a cobertura do 
estacionamento foi prevista uma praça.
189
Obra Nova: iluminação 
Foram desenvolvidas em conjunto com a 
arquiteta Ana Moraes e a Altena-Targetti 
luminárias com multiplas funçoes como as 
do foyer e as das circulações principais do 
pavimento térreo.
55
USOS ATUAIS 
Atualmente a Sala São Paulo abriga a sede 
da OSESP (Orquestra Sinfônica do Estado 
de São Paulo), a sede da Secretaria de 
Cultura, Escritórios de Advocacia, Salão de 
Festas e recebe diariamente turistas, 
estudantes e público em geral, 
disponibilizando visitas monitoradas e 
técnicas sobre a arquitetura, história e outros 
aspectos da cidade de São Paulo.
Bibliografia
Equipe 
Daniel Thomeu 
Érika Santos 
Guilherme Bernoldi 
Johnny Lima 
Larissa Gobi 
Thalita Massae 
Samy Dias

Sala São Paulo (trabalho de restauro)

  • 1.
  • 2.
  • 3.
    1 - ContextoUrbano A antiga estação ferroviária Júlio Prestes após a restauração, dá lugar à Sala São Paulo, que faz parte do Centro Cultural Júlio Prestes. O edifício fica ao lado da Pinacoteca, e próximo à Estação da Luz.
  • 5.
    2 - DeEstação de Trem à Sala de Concertos - A Estação Júlio Prestes foi construída entre 1925 e 1938 para ser a sede e ponto de partida para a Estrada de Ferro Sorocabana, uma empresa criada pelos barões do café, para transportar o produto até ao porto de Santos. O nome Julio Prestes é uma homenagem ao ex governador do Estado de São Paulo. - O projeto original da Estação Inicial Sorocabana é do Escritório Técnico Samuel e Christiano das Neves. Christiano baseou seu projeto em um estilo eclético, descrito como neoclássico Luis XVI se contrapondo com o barroco que predominava na época.
  • 8.
    3 - FunçãoOriginal A Estação Inicial Sorocabana foi inicialmente apenas uma estação de trem, onde encontramos grandes e monumentais salões que faziam a separação da classe assalariada e da elite paulistana.
  • 10.
  • 11.
    1 – Mudançasde Uso - O edifício monumental fica parcialmente inacabado devido as crises financeiras mundiais. - A Estação Júlio Prestes fica completamente fora do contexto histórico, visto que foi iniciada na década de 20 e finalizada em 1938, quando o movimento moderno já acontecia no país. - Em 1992, temos os primeiros restauros: vitrais, torre e concourse.
  • 13.
    3 – Mudançasde Proprietários Em 1995 há um interesse da Sorocabana em privatizar a ferrovia. O atual governador Mario Covas pede que a Estação Júlio Prestes fique de fora, tornando-a então um complexo cultural do governo de São Paulo.
  • 15.
  • 16.
    1 - FichaTécnica Projeto da Sala São Paulo, abril de 1997 a julho de 1999. Coordenação e gerenciamento: Acunha Sole Engenharia Arquitetura, restauro, interiores e paisagismo: Dupré Arquitetura Acústica: Artec Área a restaurar e reformar: 26.630m² Área total de intervenção: 58.134m²
  • 17.
    2 – Propostade Intervenção A proposta de Nelson Dupré consistia numa intervenção que destacasse o que era antigo e novo. Para isso, usa diferentes materiais que se destacam da edificação como o aço, vidro, concreto e madeira clara, todos desenhados de forma a evidenciar essa diferença. “A opção por um desenho com linhas retas é uma resposta à arquitetura da estação, repleta de elementos curvos.” A Sala São Paulo deveria ter dois usos distintos: um seria a sede da OSESP com a necessidade de espaços administrativos e um local para apresentações culturais, e o outro como estação ferroviária. No programa proposto para ser executado o principal componente era a instalação de uma sala para concertos que seria onde o Grande Hall no antigo projeto deveria ter sido construído, mas que foi cortado por causa da falta de verbas. Então quando se iniciou a reforma o que se encontrava naquele espaço era um jardim mal cuidado e pouco utilizado, cujo paisagismo era, basicamente, o plantio de palmeiras imperiais. Os desafios eram muitos: desde construir uma sala de concertos tão próxima a uma estação de trem, tendo que lidar com fatores como ruídos e vibrações, até o reforço da estrutura para que pudesse suportar o peso dos novos equipamentos. As intervenções superaram esses desafios e transformou aquele espaço em uma sala de apresentações que pode ser considerada o melhor auditório sinfônico da América Latina.
  • 21.
    ÁREAS QUE SOFRERAM INTERVENÇÕES RESTAURADORAS
  • 22.
    Restauro: FACHADA PRINCIPAL A fachada principal, originalmente quase toda em massa raspada, apresentava algumas partes em argamassa. Foi feita uma limpeza utilizando jatos de água morna pressurizada e detergente alcalino. Algumas partes foram recompostas, também com massa raspada. Finalmente, aplicou-se estuque e um tratamento com material hidro-repelente para proteção contra os agentes atmosféricos. O letreiro da fachada principal com o nome do edifício foi recuperado.
  • 24.
    Restauro: demais fachadas As fachadas laterais e posterior também foram lavadas com jatos de água morna e detergente alcalino e depois revestidas com plasticote, após a reconstituição dos elementos faltantes. A cobertura também foi recuperada, através da substituição de elementos danificados e faltantes.
  • 26.
    Restauro: Fachada doGrande Hall Após a montagem dos andaimes, procedeu-se à limpezqa das fachadas internas do Grande Hall. O acabamento original em massa raspada apresentava-se em bom estado de conservação, necessitando apenas de lavagem com jatos de àgua e detergente alcalino; as partes soltas foram coladas com argamassa similar à original. Nenhum tratamento ou proteção extra foi previsto, já que estas paredes não mais terão contato com o exterior.
  • 28.
    Restauro: pisos Opiso de mosaico original estava bastante danificado, provavelmente devido à utilização rotineira de produtos químicos em sua limpeza. Uma vez que não se conseguiu nenhuma empresa para devolvê-los à sua condição original, decidiu-se pela sua preservação no estado em que se encontravam, com a utilização de resina acrílica transparente, altamente resistente ao desgaste. Os pisos em granilite foram recompostos com material similar ao original em cor, composição e granulometria, e depois polidos com àgua e lixa fina. Aplicou-se ainda mais resina acrílica com acabamento metalizado e transparente. As partes de mármore, rodapés e soleiras, também foram tratas com resina acrílica. Os pisos de madeira não foram utilizados por estarem muito danificados. Novos pisos, feitos de acordo com o desenho original, receberam resina acrilica como tratamento final.
  • 30.
    Restauro: elementos emgesso Sancas, molduras e todos os acabamentos em gesso que se apresentavam danificados foram substituídos por elementos novos, também em gesso, fabricados de acordo com os parâmetros originais. As rosetas dos pontos de iluminação também foram refeitas onde necessário.
  • 32.
    Restauro: vitrais eclarabóias Todos os vitrais e clarabóias existentes foram retirados para limpeza, eliminação de pontos de ferrugem e tratamento da estrutura metálica.
  • 34.
    Restauro: alvenarias internas As alvenarias internas foram alvo de tratamento especial, constando de limpeza com jatos de água morna e detergente alcalino, aplicaão de estuque para substituição de pequenas partes faltantes e reparos onde necessário, além de um trabalho de pintura.
  • 36.
    Restauro: caixilhos deferro Todos os caixilhos metálicos foram limpos, lixados, pintados com uma camada protetora antioxidante e esmalte. As ferragens e dobradiças foram limpas e recolocadas nos seus lugares, pois estavam em bom estado de conservação. Os caixilhos metálicos posteriores, que precisaram ser refeitos por razões acústicas, seguiram o desenho original, contando agora porém como estrutura e pano de vidro duplos.
  • 38.
    Restauro: portas demadeira Durante os trabalhos de prospecção percebeu-se que as portas, batentes e demais elementos de madeira tinham sido originalmente preparados para receberem pintura. Com a retirada das portas e a remoção de toda a pintura, as portas revelaram-se de cedro. Os arquitetos optaram por manter seu acabamento em madeira natural, após aplicação de uma camada protetora de verniz. As portas que precisaram ser refeitas seguiram os parametros de desenho das portas originais. As dobradiças em bom estado foram restauradas; as que precisaram ser substituídas optou-se por acabamento oxidado. As fechaduras tiveram seus miolos substituídos por novos. Novas maçanetas e espelhos identicos aos originais.
  • 40.
    Restauro: elevadores Cadaum dos dois elevadores originais de passageiros situados junto à escada posterior haviam sido feitos em datas e por fabricantes diferentes. Os equipamentos foram restaurados mantendo-se a caixa conforme o original, porém adequando as máquinas às características de um equipamento de tecnologia e segurança modernas.
  • 42.
    Obra Nova: GrandeHall A sala de concertos foi projetada para ficar onde antes era o jardim de inverno do edifício, (seria o saguão de espera no projeto original). A futura sala de concertos deveria receber cobertura e ter seu piso rebaixado, ganhando fechamentos laterais e condicionamento climático e acústico. Na etapa inicial foram removidas as palmeiras imperiais, tendo sido realizadas sondagem do solo e escavação do piso.
  • 44.
    Obra Nova: GrandeHall, reforço de fundações A cobertura, os recursos cênicos, os equipamentos técnicos e os motores do forro móvel iriam acrescentar uma carga extra de 1000 toneladas nas colunas circundantes do Grande Hall. Embora os pilares suportassem as cargas, o mesmo não aconteceria com as fundações, que precisaram ser reforçadas. Nos locais de fácil acesso optou-se por estacas de raiz, perfuradas com ar comprimido. Nos cantos optou-se por estacas mega metálicas ou de concreto. Foi necessário ainda construir uma parede de diafragma entre o prédio da Estação e a garagem a ser edificada na parte posterior, devido à permeabilidade do solo e existência de lençol freático.
  • 46.
    Obra nova: pisoda platéia Concebida de modo a estar acusticamente isolada de ruídos externos, sobretudo os da linha férrea, todas as partes novas da sala de concertos, incluindo platéia, palco e balcões, foram isoladas da estrutura principal, constituindo uma estrutura flutuante independente. As lajes e os balcões foram apoiados sobre elementos acústicos de neoprene. O piso da plateia principal, de 15cm, é apoiado no contrapiso com calços de neoprene, sobre base de madeira compensada padrão naval, por sua vez apoiada na laje flutuante.
  • 48.
    Obra nova: pisodo palco e elevadores Após os trabalhos de escavação e construção da cortina de contenção, foi montada a estrutura metálica de suporte do palco que, por sua vez deveria ser dotado de recursos de iluminação, elevadores para uso do piano e do coro. Este permite a retirada dos instrumentos quando necessário alguma manutenção.
  • 50.
    Obra Nova: balcõeslaterais Os balcões da lateral do mezanino funcionam como estruturas independentes, apoiadas em calços de neoprene sobre uma estrutura de concreto de apoio. Os fechamentos foram feitos em madeira com alto nível de isolamento acústico. Já os balcões das laterais do 1ºpavimento se apoiam em vigas em balanço. Para o fechamento, foi feito o mesmo que as do mezanino.
  • 52.
    Obra Nova: balcãoposterior Para ela, também foi necessária a execução de novos pilares de sustentação das lajes. Os painéis laterais pré-moldados de concreto também foram revestidos com madeira com alto desempenho em termos acústicos.
  • 54.
    Obra nova: coberturado Grande Hall O projeto original do arquiteto Christiano das Neves previa sobre o Grande Hall uma cobertura em estrutura metálica parcialmente envidraçada de maneira a iluminar naturalmente o saguão. Para a nova sala de concertos foi removida a cobertura provisória, e chumbados na platibanda os apoios para a nova cobertura, nos quais foi fixada a nova estrutura de articulação, posteriormente foram fixadas também vigas treliçadas. Ainda tivemos a execução do piso técnico, onde temos os motores do teto móvel, e é isolado acusticamente dos ruídos externos. A cobertura isotérmica manteve o desenho original, com telhas isotérmicas de aço pré-pintadas e montadas com espuma de poliuretano expandido, para cobrir sua parte plana superior, e placas policarbonato alveolar, também isotermico, para as partes laterais e as quinas curvas.
  • 55.
  • 56.
    Obra Nova: mezaninometálico Para dar acesso ao primeiro nivel de balcões, na altura do mezanino, foram executadas passarelas e escadas em aço com acabamento do piso de madeira, visualmente soltas da edificação.
  • 57.
  • 58.
    Obra Nova: forroacústico móvel O forro móvel permite que diversos eventos acusticos aconteçam no local, dependendo da necessidade. São 25 grandes painéis modulares com 7,5 toneladas cada. A cada 3 painéis temos um elevador e 16 cabos de aço que se prendem nas vigas da cobertura. Os painéis possuem altura minima de 4 metros e máxima de 22 metros.
  • 59.
  • 60.
    Obra Nova: pisosflutuantes e painéis de fechamento Para garantir o bom funcionamento acústico, optou-se pela colocação de piso flutuante, que fica em cima de discos de neoprene de 9cm de diâmetro e 5cm de espessura. Já os fechamentos foram realizados em painéis almofadados moduladores, para isolamento do som
  • 61.
  • 62.
    Obra Nova: Antecâmaras Foram previstas câmaras de acesso à sala de concertos no pavimento terreo, dotadas de isolamento acustico nas portas, paredes e forros.
  • 63.
  • 64.
    Obra nova: Entreo concourse e o foyer Quiseram manter a visão do salão para a plataforma, deixando assim caixilhos envidraçados acústicos, onde há uma barragem total do som, mas ainda é possível manter o contato empírico com o trem.
  • 65.
  • 66.
    Obra Nova: salasde controle Para o controle dos forros, palco e do coro são utilizados grandes painéis, sendo considerado um edificio “inteligente”
  • 68.
    Obra nova: arcondicionado Todos os equipamentos de resfriamento do edificio foram instalados no piso técnico e na cobertura.
  • 69.
  • 70.
    Obra nova: construçãoda garagem A garagem foi executada com elementos pré moldados de concreto, em dois subsolos e com previsão de vagas para 600 pessoas. No seu segundo subsolo ainda se encontra as casas de máquinas de ar condicionado, geradores, central de energia e outras utilidades. Sobre a cobertura do estacionamento foi prevista uma praça.
  • 71.
  • 72.
    Obra Nova: iluminação Foram desenvolvidas em conjunto com a arquiteta Ana Moraes e a Altena-Targetti luminárias com multiplas funçoes como as do foyer e as das circulações principais do pavimento térreo.
  • 73.
  • 74.
    USOS ATUAIS Atualmentea Sala São Paulo abriga a sede da OSESP (Orquestra Sinfônica do Estado de São Paulo), a sede da Secretaria de Cultura, Escritórios de Advocacia, Salão de Festas e recebe diariamente turistas, estudantes e público em geral, disponibilizando visitas monitoradas e técnicas sobre a arquitetura, história e outros aspectos da cidade de São Paulo.
  • 76.
  • 78.
    Equipe Daniel Thomeu Érika Santos Guilherme Bernoldi Johnny Lima Larissa Gobi Thalita Massae Samy Dias