UNIVERSIDADE FEDERAL DA PARAÍBA C E N T R O  DE  T E C N O L O G I A DEPARTAMENTO  DE  ARQUITETURA REFORMA HABITAÇÃO UNIFAMILIAR   DESENVOLVIMENTO  DE  UM  PROJETO  EXECUTIVO  DE  REFORMA RELATÓRIO  FINAL  DO  ESTÁGIO  CURRICULAR  VI M Á R C I O  L U C E N A  .  K L E I M E R  M A R T I N S Orientador:   Prof.  Dr. Francisco  A. Gonçalves da Silva
Com um programa de necessidades direcionado a uma família de classe média, o projeto de reforma da Habitação Unifamiliar desenvolveu-se a partir da busca por um melhor aproveitamento do espaço interno e adequado às condições climáticas e de iluminação.   A distribuição dos espaços internos foi realizada racionalmente de modo que estes pudessem ter maior integração possível, ampliando o espaço e obtendo ambientes mais confortáveis.
OBJETIVO GERAL Desenvolver o projeto executivo de reforma para uma Habitação Unifamiliar (apartamento de 85m²) a partir de um programa de necessidades voltado para uma família de três pessoas em um condomínio residencial (Ed. Colorado) de classe média na cidade de João Pessoa, Paraíba. OBJETIVOS ESPECÍFICOS Aproveitar melhor a área do apartamento, através da integração dos espaços, garantindo uma melhor qualidade e conforto dos ambientes; Conhecer técnicas e processos de uma obra em construção; Vivenciar o trabalho do arquiteto, com acompanhamento em loco, e sua relação com as atividades de outros profissionais da construção civil. OBJETIVO
O desenvolvimento deste projeto constitui-se de três fases   Verificação das normativas do condomínio e da obra Conferência das cotas e da área do apartamento em campo Fase 01: levantamento de dados referentes a obra PROCEDIMENTO METODOLÓGICO  Determinar o programa de necessidades Zoneamento dos ambientes da edificação segundo suas funções Fase 02: criação
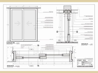
Elaboração do projeto de reforma contendo: planta baixa de reforma e planta baixa de layout. Elaboração do projeto executivo: projeto de reforma, marcação dos pontos elétricos e hidráulicos, detalhamento de esquadrias, detalhamento dos banheiros com especificação de materiais Fase 03: detalhamento técnico  PROCEDIMENTO METODOLÓGICO
LOCALIZAÇÃO  O apartamento em estudo está localizado no 23º pavimento (Nº2303), voltado para o leste, localizado no Edifício Colorado, no bairro de Manaíra, edificação em construção pela Meta Incorporações, que possui 25 pavimentos, sendo 4 apartamentos por andar, contendo garagem, mezanino e área de lazer.
O PROJETO  Projetada para uma família classe média, formada por três pessoas, casal com uma filha, a habitação possui 85m2 e um programa de necessidades que se distribui em três áreas : social, intima e serviços. Projetada p/ família de classe média (casal + 1 filha) A habitação constava de sala estar/jantar, cozinha, área de serviço,  dependência de empregada, três quartos, sendo uma suíte  e um banheiro social.  A habitação consta agora de sala estar/jantar, cozinha/área de serviço,  duas  suítes, sendo uma suíte com closet e um lavabo.  Aproveitou-se melhor a área do apartamento, através da integração  dos espaços, garantindo uma melhor qualidade e conforto dos ambientes.
DIFICULDADES ENCONTRADAS  Organizar o layout do apartamento, a partir de restrições estruturais e hidráulicas do apartamento.  Definir o projeto do fôrro de gesso, em função das diferentes dimensões das vigas.  Planejar o layout da cozinha, em funções das suas reduzidas dimensões.  Garantir uma iluminação e aeração adequada das áreas próximas ao fosso (cozinha, serviço e wcb filha), pois elas se encontravam insuficientes.
 
 
 
 
 
 
 
 
O estágio curricular tem um valor imprescindível para a formação do arquiteto, pois é a partir dele que virá o primeiro, ou talvez o mais importante contato com a realidade que o aguarda depois da graduação. Este trabalho conseguiu desempenhar seu papel elucidativo, fez o intercâmbio com a teoria das salas de aula e a vivência prática de um escritório de arquitetura, possibilitando a interação com os personagens que em breve farão parte do nosso cotidiano profissional. É importante considerar que o projeto executivo de uma edificação é  fundamental para que a obra seja executada fielmente aos conceitos de criação de seu autor. O desenvolvimento do estágio curricular proporciona ao aluno em um curto espaço de tempo, grande ensinamento de suma importância para o nosso oficio.
F  I  M

REFORMA HABITAÇÃO UNIFAMILIAR

  • 1.
    UNIVERSIDADE FEDERAL DAPARAÍBA C E N T R O DE T E C N O L O G I A DEPARTAMENTO DE ARQUITETURA REFORMA HABITAÇÃO UNIFAMILIAR DESENVOLVIMENTO DE UM PROJETO EXECUTIVO DE REFORMA RELATÓRIO FINAL DO ESTÁGIO CURRICULAR VI M Á R C I O L U C E N A . K L E I M E R M A R T I N S Orientador: Prof. Dr. Francisco A. Gonçalves da Silva
  • 2.
    Com um programade necessidades direcionado a uma família de classe média, o projeto de reforma da Habitação Unifamiliar desenvolveu-se a partir da busca por um melhor aproveitamento do espaço interno e adequado às condições climáticas e de iluminação. A distribuição dos espaços internos foi realizada racionalmente de modo que estes pudessem ter maior integração possível, ampliando o espaço e obtendo ambientes mais confortáveis.
  • 3.
    OBJETIVO GERAL Desenvolvero projeto executivo de reforma para uma Habitação Unifamiliar (apartamento de 85m²) a partir de um programa de necessidades voltado para uma família de três pessoas em um condomínio residencial (Ed. Colorado) de classe média na cidade de João Pessoa, Paraíba. OBJETIVOS ESPECÍFICOS Aproveitar melhor a área do apartamento, através da integração dos espaços, garantindo uma melhor qualidade e conforto dos ambientes; Conhecer técnicas e processos de uma obra em construção; Vivenciar o trabalho do arquiteto, com acompanhamento em loco, e sua relação com as atividades de outros profissionais da construção civil. OBJETIVO
  • 4.
    O desenvolvimento desteprojeto constitui-se de três fases Verificação das normativas do condomínio e da obra Conferência das cotas e da área do apartamento em campo Fase 01: levantamento de dados referentes a obra PROCEDIMENTO METODOLÓGICO Determinar o programa de necessidades Zoneamento dos ambientes da edificação segundo suas funções Fase 02: criação
  • 5.
    Elaboração do projetode reforma contendo: planta baixa de reforma e planta baixa de layout. Elaboração do projeto executivo: projeto de reforma, marcação dos pontos elétricos e hidráulicos, detalhamento de esquadrias, detalhamento dos banheiros com especificação de materiais Fase 03: detalhamento técnico PROCEDIMENTO METODOLÓGICO
  • 6.
    LOCALIZAÇÃO Oapartamento em estudo está localizado no 23º pavimento (Nº2303), voltado para o leste, localizado no Edifício Colorado, no bairro de Manaíra, edificação em construção pela Meta Incorporações, que possui 25 pavimentos, sendo 4 apartamentos por andar, contendo garagem, mezanino e área de lazer.
  • 7.
    O PROJETO Projetada para uma família classe média, formada por três pessoas, casal com uma filha, a habitação possui 85m2 e um programa de necessidades que se distribui em três áreas : social, intima e serviços. Projetada p/ família de classe média (casal + 1 filha) A habitação constava de sala estar/jantar, cozinha, área de serviço, dependência de empregada, três quartos, sendo uma suíte e um banheiro social. A habitação consta agora de sala estar/jantar, cozinha/área de serviço, duas suítes, sendo uma suíte com closet e um lavabo. Aproveitou-se melhor a área do apartamento, através da integração dos espaços, garantindo uma melhor qualidade e conforto dos ambientes.
  • 8.
    DIFICULDADES ENCONTRADAS Organizar o layout do apartamento, a partir de restrições estruturais e hidráulicas do apartamento. Definir o projeto do fôrro de gesso, em função das diferentes dimensões das vigas. Planejar o layout da cozinha, em funções das suas reduzidas dimensões. Garantir uma iluminação e aeração adequada das áreas próximas ao fosso (cozinha, serviço e wcb filha), pois elas se encontravam insuficientes.
  • 9.
  • 10.
  • 11.
  • 12.
  • 13.
  • 14.
  • 15.
  • 16.
  • 17.
    O estágio curriculartem um valor imprescindível para a formação do arquiteto, pois é a partir dele que virá o primeiro, ou talvez o mais importante contato com a realidade que o aguarda depois da graduação. Este trabalho conseguiu desempenhar seu papel elucidativo, fez o intercâmbio com a teoria das salas de aula e a vivência prática de um escritório de arquitetura, possibilitando a interação com os personagens que em breve farão parte do nosso cotidiano profissional. É importante considerar que o projeto executivo de uma edificação é fundamental para que a obra seja executada fielmente aos conceitos de criação de seu autor. O desenvolvimento do estágio curricular proporciona ao aluno em um curto espaço de tempo, grande ensinamento de suma importância para o nosso oficio.
  • 18.
    F I M