Este empreendimentomultiuso, um dos maiores jálançados em São Paulo, écomposto por três torres de31 pavimentos para flatshoteleiros, 24 pavimentospara conjuntos comerciais e15 lajes corporativas de2 736 m , centro deconvenções, centrocomercial, praça dealimentação e 6 cinemas.O conjunto é ancoradoatravés de grandes espaçosurbanizados abertos apúblico, muito carentes naregião. Os três subsolosabrigam 1200 vagas paraestacionamento eequipamentos gerais.F I C H A T É C N I C ACLIENTEBrascan ImobiliáriaIncorporações S.A.INCORPORADORBrascan ImobiliáriaIncorporações S.A.CONSTRUTORMétodo Engenharia S.A.OPERADORBrascan ImobiliáriaIncorporações S.A.PRODUTOEdifício de Escritórios, FlatsHoteleiros, Centro deConvenções, CentroComercial, CinemasÁREA CONSTRUÍDA93.683 m²BRASCAN CENTURY PLAZA- KÖNIGSBERGER E VANNUCCHISÃO PAULO- 1997
BRASCAN CENTURY PLAZA- KÖNIGSBERGER E VANNUCCHISÃO PAULO- 1997
As alterações não interferiram nos volumes, definidos em função dos recuos obrigatórios, mas o edifício alterou-se substancialmente com a retirada dos brises cerâmicos - espécie de cartão de visitas da construção -, desenvolvidos especialmente para o projeto. Outro ponto de rara beleza do conjunto, seu pavimento de acesso, desenhado em colaboração de Rino Levi com Burle Marx, também foi modificado. Mal, segundo alguns arquitetosF I C H A T É C N I C AJARDIM DE ROBERTO BURLE MARXFACHADA PRIGINALFACHADA ATUALRETIRADA DESASTROSA DOS BRISE CÊRAMICOS.Os cobogóscêramicos nunca (atuavam) apenas como um elemento destinado pura e simplesmente a desempenhar sua função de proteger o edifício contra o excesso de insolação, mas também como uma peça importante da composição, variando em formas e materiais de acordo com o caráter do projeto”.PLAVINIL – ELCLOR / IBOPE – RINO LEVISÃO PAULO- 1961Fonte: ARCOWEB
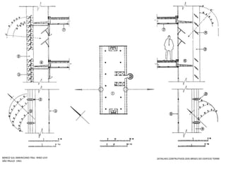
É um projeto de grandes qualidades arquitetônicas, com volumes bem proporcionados, boaresolução estrutural e de proteção solar, onde as formas derivam da busca da melhor adaptaçãoao programa e da sua relação com o espaço construído. Étotalmente adequado às condições técnicas, sociais e climáticas de onde estáinserido, considerado pelo IPT – Instituto de Pesquisa Tecnológica da Universidade de São Paulo – como o edifício mais eficiente em consumo de eletricidade da Avenida Paulista, pois devido aotratamento das fachadas com brises, praticamente não é necessário o uso do ar-condicionado.DETALHES CONTRUTIVOS DOS BRISESFACHADA EXTERNA DECADA DE 60BANCO SUL AMERICANO ITAU- RINO LEVISÃO PAULO- 1961
BANCO SUL AMERICANO ITAU- RINO LEVISÃO PAULO- 1961DETALHES CONTRUTIVOS DOS BRISES DO EDIFICIO TORRE
O projeto do Centro Cultural FIESP trata de uma remodelação nos níveis inferiores de acesso da icônicatorre em formato de tronco de pirâmide da Avenida Paulista, sede do sistema FIESP-CIESP-SESI. Estatorre é projeto vencedor de um concurso em 1969 de autoria dos arquitetos Roberto Cerqueira César eLuiz Roberto de Carvalho Franco, da Rino Levi Arquitetos Associados. O projeto da intervenção é dePaulo Mendes da Rocha, concebido em 1996 com obra inaugurada em março de 1998. Pode serdefinido como a eliminação de um trecho de laje de 18 metros no que seria o meio-nível do pavimentotérreo, que se eleva a 1,5m acima da calçada e para o qual se acedia por uma escada que, situada nolimite entre o lote e a avenida, cortava a continuidade espacial entre a cidade e o edifício. Ao se eliminarparte dessa laje, eliminou-se também um forro existente que escondia as vigas de três metros de altura,sobre a qual está apoiado o edifício – e que faz a transição para um número menor de pilares. Dessaforma foi liberada uma ampla área voltada para a fachada da avenida, com 7,5m de altura máxima equase 17m de passeio.FACHADA EXTERNADESENHOS DO PROJETO ORIGINALFIESP-RINO LEVISÃO PAULO- 1969

Atv 4 tfg

  • 1.
    Este empreendimentomultiuso, umdos maiores jálançados em São Paulo, écomposto por três torres de31 pavimentos para flatshoteleiros, 24 pavimentospara conjuntos comerciais e15 lajes corporativas de2 736 m , centro deconvenções, centrocomercial, praça dealimentação e 6 cinemas.O conjunto é ancoradoatravés de grandes espaçosurbanizados abertos apúblico, muito carentes naregião. Os três subsolosabrigam 1200 vagas paraestacionamento eequipamentos gerais.F I C H A T É C N I C ACLIENTEBrascan ImobiliáriaIncorporações S.A.INCORPORADORBrascan ImobiliáriaIncorporações S.A.CONSTRUTORMétodo Engenharia S.A.OPERADORBrascan ImobiliáriaIncorporações S.A.PRODUTOEdifício de Escritórios, FlatsHoteleiros, Centro deConvenções, CentroComercial, CinemasÁREA CONSTRUÍDA93.683 m²BRASCAN CENTURY PLAZA- KÖNIGSBERGER E VANNUCCHISÃO PAULO- 1997
  • 2.
    BRASCAN CENTURY PLAZA-KÖNIGSBERGER E VANNUCCHISÃO PAULO- 1997
  • 3.
    As alterações nãointerferiram nos volumes, definidos em função dos recuos obrigatórios, mas o edifício alterou-se substancialmente com a retirada dos brises cerâmicos - espécie de cartão de visitas da construção -, desenvolvidos especialmente para o projeto. Outro ponto de rara beleza do conjunto, seu pavimento de acesso, desenhado em colaboração de Rino Levi com Burle Marx, também foi modificado. Mal, segundo alguns arquitetosF I C H A T É C N I C AJARDIM DE ROBERTO BURLE MARXFACHADA PRIGINALFACHADA ATUALRETIRADA DESASTROSA DOS BRISE CÊRAMICOS.Os cobogóscêramicos nunca (atuavam) apenas como um elemento destinado pura e simplesmente a desempenhar sua função de proteger o edifício contra o excesso de insolação, mas também como uma peça importante da composição, variando em formas e materiais de acordo com o caráter do projeto”.PLAVINIL – ELCLOR / IBOPE – RINO LEVISÃO PAULO- 1961Fonte: ARCOWEB
  • 4.
    É um projetode grandes qualidades arquitetônicas, com volumes bem proporcionados, boaresolução estrutural e de proteção solar, onde as formas derivam da busca da melhor adaptaçãoao programa e da sua relação com o espaço construído. Étotalmente adequado às condições técnicas, sociais e climáticas de onde estáinserido, considerado pelo IPT – Instituto de Pesquisa Tecnológica da Universidade de São Paulo – como o edifício mais eficiente em consumo de eletricidade da Avenida Paulista, pois devido aotratamento das fachadas com brises, praticamente não é necessário o uso do ar-condicionado.DETALHES CONTRUTIVOS DOS BRISESFACHADA EXTERNA DECADA DE 60BANCO SUL AMERICANO ITAU- RINO LEVISÃO PAULO- 1961
  • 5.
    BANCO SUL AMERICANOITAU- RINO LEVISÃO PAULO- 1961DETALHES CONTRUTIVOS DOS BRISES DO EDIFICIO TORRE
  • 6.
    O projeto doCentro Cultural FIESP trata de uma remodelação nos níveis inferiores de acesso da icônicatorre em formato de tronco de pirâmide da Avenida Paulista, sede do sistema FIESP-CIESP-SESI. Estatorre é projeto vencedor de um concurso em 1969 de autoria dos arquitetos Roberto Cerqueira César eLuiz Roberto de Carvalho Franco, da Rino Levi Arquitetos Associados. O projeto da intervenção é dePaulo Mendes da Rocha, concebido em 1996 com obra inaugurada em março de 1998. Pode serdefinido como a eliminação de um trecho de laje de 18 metros no que seria o meio-nível do pavimentotérreo, que se eleva a 1,5m acima da calçada e para o qual se acedia por uma escada que, situada nolimite entre o lote e a avenida, cortava a continuidade espacial entre a cidade e o edifício. Ao se eliminarparte dessa laje, eliminou-se também um forro existente que escondia as vigas de três metros de altura,sobre a qual está apoiado o edifício – e que faz a transição para um número menor de pilares. Dessaforma foi liberada uma ampla área voltada para a fachada da avenida, com 7,5m de altura máxima equase 17m de passeio.FACHADA EXTERNADESENHOS DO PROJETO ORIGINALFIESP-RINO LEVISÃO PAULO- 1969