FIRJAN
CIRJ
SESI
SENAI
IEL
TUBULAÇÕES
INDUSTRIAIS
SENAI-RJ • Metrologia
CONTROLE DIMENSIONAL
Caldeiraria e tubulação
versão preliminar
TUBULAÇÕES
INDUSTRIAIS
CONTROLE DIMENSIONAL
Caldeiraria e tubulação
Referente à norma PETROBRAS N-2109, set./98
FIRJAN−Federação das Indústrias do Estado do Rio de Janeiro
Eduardo Eugenio Gouvêa Vieira
Presidente
Diretoria Operacional Corporativa
Augusto Cesar Franco de Alencar
Diretor
Diretoria Regional do SENAI-RJ
Fernando Sampaio Alves Guimarães
Diretor
Diretoria de Educação
Andréa Marinho de Souza Franco
Diretora
SENAI-RJ
2004
TUBULAÇÕES
INDUSTRIAIS
CONTROLE DIMENSIONAL
Caldeiraria e tubulação
Ficha Técnica
Tubulações Industriais
2004
SENAI – Rio de Janeiro
Diretoria de Educação
Gerência de Educação Luís RobertoArruda
Gerência de Produto Newton Martins
Produção editorial Vera Regina CostaAbreu
Pesquisa de Conteúdo e Redação Nilo de Souza e Silva
Revisão Pedagógica Maria Leonor de Macedo Soares Leal
Revisão Gramatical Alexandre Rodrigues Alves
Revisão Editorial MariaAngela Calvão da Silva
Colaboração Marcelo Oliveira Gaspar de Carvalho
Projeto Gráfico Artae Design & Criação
Edição revista do material Desenho para Curso Técnico de Instrumentação, publicado pelo
SENAI-DN, 1988.
SENAI – Rio de Janeiro
GEP – Gerência de Educação Profissional
Rua Mariz e Barros, 678 – Tijuca
20270-903 – Rio de Janeiro – RJ
Tel.: (21) 2587-1116
Fax: (21) 2254-2884
E-mail: GEP@rj.senai.br
http://www.rj.senai.br
Sumário
11111
22222
APRESENTAÇÃO ............................................................................11
UMA PALAVRA INICIAL ................................................................13
TUBOS, ACESSÓRIOS E VÁLVULAS...........................................17
Tubos............................................................................................................................. 19
Acessórios de tubulações ........................................................................................ 34
Válvula .......................................................................................................................... 66
Praticando .................................................................................................................... 79
DESENHO ISOMÉTRICO DE TUBULAÇÕES ...........................81
Isométricos.................................................................................................................. 83
Simbologia de tubulações para desenhos isométricos ...................................... 88
Exemplos de desenhos isométricos ..................................................................... 101
Identificação dos elementos da tubulação em desenhos isométricos ......... 103
Praticando .................................................................................................................. 105
ANEXOS ........................................................................................ 113
REFERÊNCIAS BIBLIOGRÁFICAS ............................................ 129
33333
Prezado aluno,
Quando você resolveu fazer um curso em nossa instituição, talvez não soubesse que, desse momento
em diante, estaria fazendo parte do maior sistema de educação profissional do país: o SENAI. Há
mais de sessenta anos, estamos construindo uma história de educação voltada para o desenvolvimento
tecnológico da indústria brasileira e da formação profissional de jovens e adultos.
Devido às mudanças ocorridas no modelo produtivo, o trabalhador não pode continuar com uma
visão restrita dos postos de trabalho. Hoje, o mercado exigirá de você, além do domínio do conteúdo
técnico de sua profissão, competências que lhe permitam decidir com autonomia, proatividade,
capacidade de análise, solução de problemas, avaliação de resultados e propostas de mudanças no
processo do trabalho. Você deverá estar preparado para o exercício de papéis flexíveis e polivalentes,
assim como para a cooperação e a interação, o trabalho em equipe e o comprometimento com os
resultados.
Soma-se, ainda, que a produção constante de novos conhecimentos e tecnologias exigirá de você a
atualização contínua de seus conhecimentos profissionais, evidenciando a necessidade de uma formação
consistente que lhe proporcione maior adaptabilidade e instrumentos essenciais à auto-aprendizagem.
Essa nova dinâmica do mercado de trabalho vem requerendo que os sistemas de educação se
organizem de forma flexível e ágil, motivos esses que levaram o SENAI a criar uma estrutura
educacional, com o propósito de atender às novas necessidades da indústria, estabelecendo uma
formação flexível e modularizada.
Essa formação flexível tornará possível a você, aluno do sistema, voltar e dar continuidade à sua
educação, criando seu próprio percurso. Além de toda a infra-estrutura necessária ao seu
desenvolvimento, você poderá contar com o apoio técnico-pedagógico da equipe de educação dessa
escola do SENAI para orientá-lo em seu trajeto.
Mais do que formar um profissional, estamos buscando formar cidadãos.
Seja bem-vindo!
Andréa Marinho de Souza Franco
Diretora de Educação
SENAI/RJ - 11
Tubulações Industriais – Apresentação
A dinâmica social dos tempos de globalização exige dos profissionais atualização constante. Mesmo
as áreas tecnológicas de ponta ficam obsoletas em ciclos cada vez mais curtos, trazendo desafios
renovados a cada dia, e tendo como conseqüência para a educação a necessidade de encontrar novas
e rápidas respostas.
Nesse cenário, impõe-se a educação continuada, exigindo que os profissionais busquem atualização
constante durante toda a sua vida - e os docentes e alunos do SENAI/-RJ incluem-se nessas novas
demandas sociais.
É preciso, pois, promover, tanto para os docentes como para os alunos da educação profissional, as
condições que propiciem o desenvolvimento de novas formas de ensinar e aprender, favorecendo o
trabalho de equipe, a pesquisa, a iniciativa e a criatividade, entre outros aspectos, ampliando suas
possibilidades de atuar com autonomia, de forma competente.
A partir dessa perspectiva é que também elaboramos mais este material didático do conjunto
especialmente destinado a você, aluno do Curso de Controle Dimensional. Assim como os demais, ele
tem o objetivo primordial de apoiar seus estudos e favorecer a sua participação nas aulas.
O estudo dos conteúdos tratados no primeiro bloco do material e a realização dos exercícios propostos
vão capacitar você para classificar e interpretar corretamente tubos, acessórios e válvulas. E os
assuntos abordados no segundo bloco irão prepará-lo para elaborar esboços de planta baixa e fazer
desenhos isométricos de tubulações.
Esperamos, desse modo, que o material contribua efetivamente para o enriquecimento de sua formação
profissional, tornando-o mais capacitado para enfrentar o seu dia-a-dia de trabalho com desembaraço e
Apresentação
Tubulações Industriais – Uma Palavra Inicial
SENAI/RJ - 13
Uma palavra inicial
competência.
Meio ambiente...
Saúde e segurança no trabalho...
O que é que nós temos a ver com isso?
Antes de iniciarmos o estudo deste material, há dois pontos que merecem destaque: a relação entre
o processo produtivo e o meio ambiente; e a questão da saúde e segurança no trabalho.
As indústrias e os negócios são a base da economia moderna. Produzem os bens e serviços
necessários, e dão acesso a emprego e renda; mas, para atender a essas necessidades, precisam usar
recursos e matérias-primas. Os impactos no meio ambiente muito freqüentemente decorrem do tipo
de indústria existente no local, do que ela produz e, principalmente, de como produz.
É preciso entender que todas as atividades humanas transformam o ambiente. Estamos sempre
retirando materiais da natureza, transformando-os e depois jogando o que “sobra” de volta ao ambiente
natural. Ao retirar do meio ambiente os materiais necessários para produzir bens, altera-se o equilíbrio
dos ecossistemas e arrisca-se ao esgotamento de diversos recursos naturais que não são renováveis
ou, quando o são, têm sua renovação prejudicada pela velocidade da extração, superior à capacidade
da natureza para se recompor. É necessário fazer planos de curto e longo prazo, para diminuir os
impactos que o processo produtivo causa na natureza. Além disso, as indústrias precisam se preocupar
com a recomposição da paisagem e ter em mente a saúde dos seus trabalhadores e da população que
vive ao redor delas.
Com o crescimento da industrialização e a sua concentração em determinadas áreas, o problema
da poluição aumentou e se intensificou. A questão da poluição do ar e da água é bastante complexa,
pois as emissões poluentes se espalham de um ponto fixo para uma grande região, dependendo dos
ventos, do curso da água e das demais condições ambientais, tornando difícil localizar, com precisão, a
origem do problema. No entanto, é importante repetir que, quando as indústrias depositam no solo os
resíduos, quando lançam efluentes sem tratamento em rios, lagoas e demais corpos hídricos, causam
danos ao meio ambiente.
O uso indiscriminado dos recursos naturais e a contínua acumulação de lixo mostram a falha básica
Tubulações Industriais – Uma Palavra Inicial
14 - SENAI/RJ
de nosso sistema produtivo: ele opera em linha reta. Extraem-se as matérias-primas através de processos
de produção desperdiçadores e que produzem subprodutos tóxicos. Fabricam-se produtos de utilidade
limitada que, finalmente, viram lixo, o qual se acumula nos aterros. Produzir, consumir e dispensar bens
dessa forma, obviamente, não é sustentável.
Enquanto os resíduos naturais (que não podem, propriamente, ser chamados de “lixo”) são absorvidos
e reaproveitados pela natureza, a maioria dos resíduos deixados pelas indústrias não tem aproveitamento
para qualquer espécie de organismo vivo e, para alguns, pode até ser fatal. O meio ambiente pode
absorver resíduos, redistribuí-los e transformá-los. Mas, da mesma forma que a Terra possui uma
capacidade limitada de produzir recursos renováveis, sua capacidade de receber resíduos também é
restrita, e a de receber resíduos tóxicos praticamente não existe.
Ganha força, atualmente, a idéia de que as empresas devem ter procedimentos éticos que considerem
a preservação do ambiente como uma parte de sua missão. Isso quer dizer que se devem adotar
práticas que incluam tal preocupação, introduzindo processos que reduzam o uso de matérias-primas
e energia, diminuam os resíduos e impeçam a poluição.
Cada indústria tem suas próprias características. Mas já sabemos que a conservação de recursos
é importante. Deve haver crescente preocupação com a qualidade, durabilidade, possibilidade de
conserto e vida útil dos produtos.
As empresas precisam não só continuar reduzindo a poluição, como também buscar novas formas
de economizar energia, melhorar os efluentes, reduzir a poluição, o lixo, o uso de matérias-primas.
Reciclar e conservar energia são atitudes essenciais no mundo contemporâneo.
É difícil ter uma visão única que seja útil para todas as empresas. Cada uma enfrenta desafios
diferentes e pode se beneficiar de sua própria visão de futuro. Ao olhar para o futuro, nós (o público,
as empresas, as cidades e as nações) podemos decidir quais alternativas são mais desejáveis e trabalhar
com elas.
Infelizmente, tanto os indivíduos quanto as instituições só mudarão as suas práticas quando
acreditarem que seu novo comportamento lhes trará benefícios - sejam estes financeiros, para sua
reputação ou para sua segurança.
A mudança nos hábitos não é uma coisa que possa ser imposta. Deve ser uma escolha de pessoas
bem-informadas a favor de bens e serviços sustentáveis. A tarefa é criar condições que melhorem a
capacidade de as pessoas escolherem, usarem e disporem de bens e serviços de forma sustentável.
Além dos impactos causados na natureza, diversos são os malefícios à saúde humana provocados
pela poluição do ar, dos rios e mares, assim como são inerentes aos processos produtivos alguns riscos
à saúde e segurança do trabalhador. Atualmente, acidente do trabalho é uma questão que preocupa os
empregadores, empregados e governantes, e as conseqüências acabam afetando a todos.
De um lado, é necessário que os trabalhadores adotem um comportamento seguro no trabalho,
usando os equipamentos de proteção individual e coletiva; de outro, cabe aos empregadores prover a
empresa com esses equipamentos, orientar quanto ao seu uso, fiscalizar as condições da cadeia produtiva
e a adequação dos equipamentos de proteção.
Aredução do número de acidentes só será possível à medida que cada um - trabalhador, patrão e governo
Tubulações Industriais – Uma Palavra Inicial
SENAI/RJ - 15
- assuma, em todas as situações, atitudes preventivas, capazes de resguardar a segurança de todos.
Deve-se considerar, também, que cada indústria possui um sistema produtivo próprio, e, portanto, é
necessário analisá-lo em sua especificidade, para determinar seu impacto sobre o meio ambiente,
sobre a saúde e os riscos que o sistema oferece à segurança dos trabalhadores, propondo alternativas
que possam levar à melhoria de condições de vida para todos.
Da conscientização, partimos para a ação: cresce, cada vez mais, o número de países, empresas e
indivíduos que, já estando conscientizados acerca dessas questões, vêm desenvolvendo ações que
contribuem para proteger o meio ambiente e cuidar da nossa saúde. Mas isso ainda não é suficiente...
faz-se preciso ampliar tais ações, e a educação é um valioso recurso que pode e deve ser usado em tal
direção. Assim, iniciamos este material conversando com você sobre meio ambiente, saúde e segurança
no trabalho, lembrando que, no seu exercício profissional diário, você deve agir de forma harmoniosa
com o ambiente, zelando também pela segurança e saúde de todos no trabalho.
Tente responder à pergunta que inicia este texto: meio ambiente, saúde e segurança no trabalho - o
que é que eu tenho a ver com isso? Depois, é partir para a ação. Cada um de nós é responsável.
Vamos fazer a nossa parte?
Tubos, acessórios e
válvulas
1
Nesta Seção...
Tubos
Acessórios de tubulações
Válvula
Praticando
Tubulações Industriais – Tubos, Acessórios e Válvulas
SENAI/RJ - 19
Tubulação
É o nome dado ao conjunto de tubos, acessórios, válvulas e dispositivos que participam de um
processo em uma área ou unidade, constituindo uma de suas partes mais importantes. Eles compõem,
juntamente com os equipamentos como torres, permutadores, tanques e bombas, um complexo
necessário ao funcionamento de uma unidade de processo.
Este é, pois, o assunto de que trataremos neste primeiro bloco de estudos. Lembramos que, devido
à grande variedade dos acessórios, aqui apresentaremos apenas aqueles necessários para você ter
uma visão geral desses elementos, tanto de modo isolado como em conjunto com o restante dos
equipamentos.
Tubos
Os tubos são elementos vazados, normalmente de forma cilíndrica e seção constante, utilizados no
transporte de fluidos, os quais podem ser líquidos, gasosos ou mistos.
Observe.
Fig. 1
Tubulações Industriais – Tubos, Acessórios e Válvulas
20 - SENAI/RJ
Para auxiliar o deslocamento dos fluidos entre os equipamentos (vasos, torres, permutadores etc.) e
para os tanques de armazenamento, ao final do processo, são utilizadas máquinas como bombas e
compressores.
Entidades normalizadoras
Os métodos e o processo de fabricação de tubos, assim como os materiais empregados, as dimensões
a serem observadas e as possíveis aplicações estão normalizados por entidades como as seguintes:
ASA - American Standard Association
ANSI - American National Steel Institute
MSS - Manufacture Standartization Society
ASME - American Society Mechanical of Engenier
DIN - Dentsh Industrie Normen
ASTM - American Society for Testing Material
ABNT - Associação Brasileira de Normas Técnicas
API - American Petroleum Institute
ISA - Instrumentation Standard of American
Os principais objetivos das normas elaboradas por essas entidades são:
- orientar os executores dos projetos mediante a criação de especificação e serviços adequados;
- trabalhar pela criação de métodos e padrões de fabricação;
- delimitar as responsabilidades e fixar tolerâncias de fabricação;
- estabelecer materiais e especificações de aplicações de determinadas matérias na fabricação de
tubos e seus acessórios.
Tipos de materiais dos tubos
Embora a fabricação de tubos empregue mais de 200 tipos de materiais, somente uns 40 tipos são
utilizados na produção comercial.
Os tubos mais usados são os de materiais ferrosos como o aço-carbono, o aço-liga e o aço inoxidável.
Os tubos de ferro fundido são restritos às instalações de utilidade como de água, de esgoto etc.
Tubulações Industriais – Tubos, Acessórios e Válvulas
SENAI/RJ - 21
O aço-carbono é uma liga de ferro de carbono. A percentagem de carbono, que pode variar de 0,15
a 0,5%, determina o grau de dureza do aço. Quanto maior a percentagem de carbono na liga, maior
será a dureza e também maior a dificuldade de soldagem do aço. E a soldagem é um dos processos de
maior utilização na união de tubos a acessórios.
Nas indústrias de processamento, principalmente nas petroquímicas e petrolíferas, os tubos de aço-
carbono são os mais utilizados, devido às suas excelentes qualidades mecânicas, à boa soldabilidade e
ao baixo custo. Além disso, eles podem trabalhar com água, vapor condensado, gás e óleo a pressões
e temperaturas elevadas.
Mas o aço-carbono também apresenta algumas restrições. Em temperaturas abaixo de -30°C, ele
se torna quebradiço. E, acima de 500°C, está sujeito a deformações lentas. Outras desvantagens são
a baixa resistência a fluidos e à corrosão, quando exposto a ambiente úmido. Quando é necessária a
utilização de tubulações nessas situações, o projeto estabelece a utilização de aços-ligas ou inoxidáveis.
Os aços-ligas e os inoxidáveis podem conter cromo, níquel, molibdênio ou titânio, dificultando a
ação dos agentes que atacam o aço. Outra modalidade de defesa contra esses agentes é a utilização
de tubos galvanizados, desde que os projetistas assim o determinem.
Outros materiais empregados na fabricação dos tubos são, por exemplo:
- cobre e suas ligas;
- alumínio;
- chumbo;
- materiais plásticos (PVC, Teflon, polietileno, epoxi, etc.);
- vidros, cerâmicas, barro, concreto;
- borracha.
O cobre e suas ligas trabalham numa faixa de temperatura de 180°C até 200°C, sendo materiais de
ótima resistência à oxidação e a inúmeros fluidos corrosivos. Os tubos fabricados com esses materiais
são empregados na indústria em feixes tubulares, serpentinas para refrigeração e serpentinas para
aquecimento a vapor de baixa pressão.
Já na instrumentação, os tubos de cobre ou de ligas de cobre são aplicados em ar comprimido e
para sinais de instrumentos.
Tubulações Industriais – Tubos, Acessórios e Válvulas
22 - SENAI/RJ
A figura 2 mostra a aplicação de tubos de cobre em instrumentos.
No caso do alumínio, os tubos produzidos com esse material são empregados para troca de calor e
os tubos de chumbo são utilizados em tubulações de esgoto sem pressão.
Já os tubos de plástico têm utilização em casos de baixa temperatura e pressão, uma vez que
apresentam a vantagem de serem de baixo peso, baixo custo e de grande resistência a muitos produtos
corrosivos, quando comparados a materiais metálicos. Dizemos que, em geral, os plásticos substituem
os metais onde eles são fortemente atacados.
Os ácidos diluídos, por exemplo, não atacam os plásticos, mas afetam fortemente os metais. Já os
álcalis concentrados, no entanto, atacam os plásticos mas não afetam muitos os metais. No caso dos
componentes de produtos do petróleo, por exemplo, eles podem ser conduzidos por tubos metálicos,
mas nem todos por tubos plásticos.
A escolha do material empregado nos tubos está diretamente relacionada ao projeto e às
características das variáveis do processo como: pressão, temperatura, vazão, viscosidade e outros. Os
fatores que também influenciam na escolha dos materiais dos tubos são a segurança, as cargas
mecânicas, a corrosão e os custos, entre outros.
Fig. 2
instrumento
tubulação para instrumentação
tubulação de processo
Tubulações Industriais – Tubos, Acessórios e Válvulas
SENAI/RJ - 23
Métodos de fabricação de tubos
Há duas grandes classes de fabricação de tubos: a sem costura e a com costura. Vejamos, então,
o que caracteriza cada um desses métodos.
Fabricação de tubos sem costura
Diz-se que um tubo é sem costura quando ele é fabricado sem emendas longitudinais ou transversais.
Os processos industriais de fabricação dos tubos sem costura são em número de quatro: fundição,
forjamento, extrusão e laminação, que descreveremos a seguir. Por meio desses processos, os
tubos tomam-se de qualidade superior e próprios para juntarem pressões elevadas.
• Fundição
O tubo é fabricado em um molde no qual o material é despejado em estado líquido.Ao se solidificar,
o tubo estará com sua forma definida. Por esse processo são fabricados tubos de ferro fundido, de
barro, borrachas, concretos etc.
• Forjamento
É um processo de pouca aplicação, em que um lingote de aço aquecido ao rubro é martelado contra
um mandril central, até que a forma e a espessura desejada sejam obtidas. Durante a martelagem, o
lingote vai aumentando o comprimento.
• Extrusão
O material em estado pastoso é pressionado por êmbolo através de um furo de uma matriz e por
fora do mandril. Ao sair, ele já tem a forma de tubo. Após essa operação o tubo, ainda curto, passa por
laminadores que vão dando as formas e dimensões definitivas. Por extrusão fabricam-se tubos de
pequenos diâmetros, como os de alumínio, cobre, chumbo e plástico.
• Laminação
É o processo de fabricação mais importante dos tubos sem costura, que consiste em passar um
lingote de aço aquecido a 1200°C num laminador. O lingote, ao passar entre os rolos do laminador, é
prensado fortemente, ao mesmo tempo que um mandril abre um furo, transformando-o em tubo.
Fabricação de tubos com costura
Os tubos com costura são fabricados pelos processos de soldagem, a partir de chapas enroladas.
Esses tipos de tubos, apesar de possuírem menor resistência que os sem costura, são de uso mais
freqüente, pelo fato de terem um custo mais baixo, devido à facilidade do processo de soldagem.
Por meio da soldagem os tubos podem ser fabricados de dois modos distintos:
Tubulações Industriais – Tubos, Acessórios e Válvulas
24 - SENAI/RJ
- enrolando uma chapa em espiral e soldando a emenda (em espiral);
- enrolando (por calandragem) a chapa no sentido longitudinal e soldando a emenda (longitudinal).
Dentre os processos de fabricação dos tubos soldados, a soldagem a arco elétrico é a mais
utilizada. Por esse processo, o calor para produzir a fusão do metal de base (tubo) é gerado por arco
elétrico produzido entre dois eletrodos, ou entre um eletrodo e a peça que está sendo soldada.
A soldagem é utilizada na fabricação dos tubos e também na montagem das tubulações.
Os processos de soldagem industrial são automatizados ou semi-automatizados, sendo a solda
manual raramente utilizada. Dentre esses processos, os mais importantes são:
- soldagem com eletrodo revestido;
- soldagem com arco submerso;
- soldagem com gás inerte e eletrodo de tungstênio - TIG e MIG/MAG.
Significado das normas ASTM para identificação do
material
As normas ASTM são as mais utilizadas em relação aos materiais empregados na fabricação de
tubos, embora as normas DIN e as normas ABNT também apresentem especificações a esse respeito.
Vamos entender o que significa cada elemento que aparece na especificação de uma norma,
analisando esses dois exemplos:
ASTM A-161 gr. A ASTM B-247
Os elementos que aparecem nessas duas especificações e seus respectivos significados são os
seguintes:
• ASTM
Indica as iniciais da entidade normalizadora: American Society Testing of Material.
Tubulações Industriais – Tubos, Acessórios e Válvulas
SENAI/RJ - 25
• A ou B
Essas são as letras que aparecem nos exemplos, logo depois das iniciais da entidade, e que indicam
o tipo de material. São quatro letras possíveis, sendo cada uma para um material diferente, como
especificado a seguir:
A → indica material aço (aço-carbono baixo ou alto, aço-liga, aço forjado, inox ou outros);
B → indica genericamente o material cobre, ligas, latão, alumínio, níquel e outros;
C → indica genericamente o material cerâmica ou fibrocimento;
D → indica genericamente o material plástico (PVC, acetato de celulose e outros).
• 161 ou 247
Esses são os números que, nos exemplos dados, vêm logo depois da letra que indica o tipo de
material. Os números sinalizam as características de construção (por exemplo: se é com costura ou
sem costura), as faixas de temperaturas de trabalho e ainda, em alguns casos, a indicação específica
para determinada espécie de trabalho (por exemplo: para caldeiras, para produtos petrolíferos etc.).
Nos exemplos dados, os números significam o seguinte:
161 → significa tubos de aço-carbono e molibdênio sem costura para emprego em refinarias, nas
instalações do cracking;
247 → significa tubo de alumínio forjado em matriz.
• gr. A ou gr. B
Essa anotação que aparece em seguida ao número caracteriza pequenas variações nas aplicações
para um mesmo material.
Dimensões de tubos
De acordo com a Normas ANSI B.36.10, todo tubo de aço, qualquer que seja seu processo de
fabricação, é designado por um número denominado diâmetro nominal. Esse diâmetro nominal não
tem dimensões físicas assinaladas no tubo, sendo usado somente como indicação.
Tubulações Industriais – Tubos, Acessórios e Válvulas
26 - SENAI/RJ
Veja, nessa figura, as dimensões de um tubo.
onde:
di → diâmetro interno
de → diâmetro externo
e → espessura da parede
Na especificação dos tubos, é muito importante que a sua espessura seja indicada porque essa
indicação, aliada ao tipo de material empregado na fabricação, permite que o profissional calcule a
dimensão adequada para resistir às cargas mecânicas previstas em projeto.
A espessura dos tubos, segundo a Norma ANSI B.36.10, é estabelecida em séries denominadas
schedule, que é abreviado por SCH. A série de schedules é apresentada pelos seguintes números:
SCH - 5, 10, 20, 30, 40, 60, 80, 100, 120, 140 e 160.
Para um mesmo diâmetro nominal existem várias schedules diferentes. No exemplo ilustrado nessa
figura, em que o diâmetro (Ø) nominal é de 10" (dez polegadas), observamos que quanto maior o
número do SCH, maior é a espessura do tubo.
Conheça agora a tabela de dimensões de tubos de aço-laminado ou soldados, segundo a Norma
ANSI B.36.10
Fig. 3
e
di
de
Fig. 4
e=18,2 e=12,7 e=7,7
de=273
sch:100 sch:60 sch:30
Tubulações Industriais – Tubos, Acessórios e Válvulas
SENAI/RJ - 27
Tabela de tubos de aço e carbono, segundo a norma ANSI B.36.10
T = Espessura das partes dos tubos
Extremidades dos tubos
Numa unidade de processo, em decorrência do posicionamento dos equipamentos, os tubos
necessitam se interligar, mudar de direção e de nível ou, ainda, se conectar à válvula e aos próprios
equipamentos. Prevendo essa necessidade, os fabricantes fornecem tubos com 4 tipos de extremidades.
Vejamos quais são eles.
• Extremidade lisa
Ou simplesmente esquadrejada, permite uniões com bolsa, flanges sobrepostos ou de encaixe e de
bolsa.
Tabela 1
Fig. 5
Tubulações Industriais – Tubos, Acessórios e Válvulas
28 - SENAI/RJ
• Extremidade biselada
É freqüentemente usada em uniões com solda de topo.
• Extremidade rosqueada
É muito usada em tubos galvanizados de ferro forjado e de aço. É limitada até o diâmetro nominal
de 4", nos schedules 80 a 160. As roscas utilizadas são normalmente cônicas NPT (National Pipe
Thead) ou roscas de gás BS (Whitworh). Esses tipos de extremidades não são recomendadas para
temperaturas elevadas.
• Extremidade com bolsas
É restrita a condutos de água, esgoto e alguns produtos corrosivos, sendo raramente utilizada em
processo.
A escolha de uma dessas extremidades é feita de acordo com o tipo de ligação estabelecida no
projeto e é determinada em função das dimensões dos tubos, da pressão de trabalho, da temperatura
etc. Maiores detalhes sobre os tipos de uniões citados aqui você encontrará no item relativo aos
acessórios.
Fig. 7
Fig. 8
Fig. 6
Tubulações Industriais – Tubos, Acessórios e Válvulas
SENAI/RJ - 29
Identificação das tubulações no projeto
Todos os projetos industriais adotam um sistema de identificação para todas as tubulações, vasos,
tanques, máquinas e instrumentos.
No caso das tubulações, elas são identificadas por siglas que englobam:
- o diâmetro nominal da linha, que geralmente é fornecido em polegadas;
- a abreviatura do tipo de fluido que circula na linha (água, vapor, gás etc.);
- o número da unidade de processo;
- o número da linha;
- a especificação da linha quanto aos materiais de sua composição (característica da firma);
- o tipo de isolamento, se houver.
Veja este exemplo.
Vamos agora comentar sobre cada um desses elementos que compõem a identificação da tubulação
no projeto.
• Diâmetro nominal
É geralmente fornecido em polegadas. No exemplo apresentado ele é de 6".
• Tipo de fluido
A letra indicativa dos fluidos é estabelecida pela empresa executora dos projetos. Essa letra pode
vir sozinha ou acompanhada de outra, para melhor definição do tipo de fluido.
diam. nominal da linha
tipo de fluido
número da linha e da área
especificação do material
6” – A . 320 – B
Tubulações Industriais – Tubos, Acessórios e Válvulas
30 - SENAI/RJ
Dentre as várias letras utilizadas e os fluidos que elas indicam, destacamos alguns exemplos:
C - combustível
G - gases
V - vapor
O - óleo
SW - água salgada
H - ácido
N - cáustico
W - água
Ai - ar de instrumentos
HW - água quente
• Número da linha
Nesse número, o primeiro ou os primeiros algarismos indicam a área em que a tubulação se encontra.
E os últimos indicam o número de ordem da linha. Por exemplo: o número 243 indica área 2 e tubulações
no
043.
• Especificação do material
Essa especificação é feita de acordo com as normas, sendo apresentada no projeto executado
exclusivamente para cada classe de serviço e para cada projeto ou instalação. A letra especifica o
material, como vimos no exemplo anterior.
Finalmente vale lembrar que, assim como ocorre com as tubulações, os equipamentos também são
indicados por siglas, como podemos ver nesses exemplos:
B – 304 T – 401
P - 405 V - 302
↓ ↓
Bomba Torre
VasoPermutador
↓↓
Tubulações Industriais – Tubos, Acessórios e Válvulas
SENAI/RJ - 31
Representação gráfica dos tubos nos desenhos de
tubulações
Nos desenhos de tubulações, os tubos devem ser representados de modo específico, como
determinam suas respectivas normas. Essa representação pode ser relativa a tubos de processo ou a
tubos para instrumentação.
Vejamos cada caso.
Representação dos tubos de processo
A norma NB-59 rev.C - set.99 da Petrobras estabelece duas formas de representação dos tubos de
processo, que variam em função do diâmetro desses tubos.
• Para tubos de φφφφφ a ≥≥≥≥≥ 12"
Observe, nas figuras que seguem, a vista frontal e a vista de perfil, respectivamente, da representação
de um tubo de processo.
• Para tubos acima de 12"
Nesse caso, a representação é feita com linha dupla, num pequeno trecho somente, como vemos
na figura 10. Veja os sinais que aparecem nas extremidades das linhas e que indicam a interrupção no
desenho.
Fig. 9
Fig. 10
vista frontal vista de topo ou lateral
sinal de interrupção
vista frontal vista de topo ou lateral
Tubulações Industriais – Tubos, Acessórios e Válvulas
32 - SENAI/RJ
Representação dos tubos para instrumentação
A representação dos tubos para instrumentação também é feita de acordo com a simbologia das
normas ISA, para instrumentação, como mostrado a seguir.
• Ar para instrumentação (geral)
• Sinal pneumático
• Sinal hidráulico
• Linha de vapor
É importante lembrar que, no desenho, a espessura das linhas dos tubos para instrumentação deve
ser mais fina do que a utilizada para os tubos de processo.
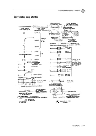
Anotação da identificação da tubulação no desenho
A indicação que individualiza cada trecho da tubulação é utilizada em plantas de tubulações,
isométricos e fluxogramas, sendo anotada na parte superior da linha do tubo.
Na parte inferior do tubo é anotada a altura ou elevação (EL.) em que está localizado o tubo em relação
ao grade da planta. Essa altura pode ser expressa em unidades do sistema métrico ou do sistema inglês.
Afigura 11 mostra as anotações de identificação que são feitas nas linhas do desenho. Observe com
atenção.
Tubulações Industriais – Tubos, Acessórios e Válvulas
SENAI/RJ - 33
Agora analise alguns exemplos de anotações que são feitas para identificação da tubulação em
planta, isométrico e fluxograma.
• Representação em planta
• Representação em isométrico
Fig. 13
Fig. 11
2” O 415 – A
EL 104.000
EL 104.000
EL 10.000
4” O 401 – BV
Fig. 12
4” – A – 302 – B
EL 102.000
3” – A – 302 – A
EL 101.000
B32
4” – A
– 302 – B
EL 102.000
3” –
A
–
302
–
A
EL 101.000
B32
Tubulações Industriais – Tubos, Acessórios e Válvulas
34 - SENAI/RJ
• Representação em fluxograma
Acessórios de tubulações
Acessórios de tubulações são peças utilizadas nas tubulações de modo a permitir mudanças de
direção, de nível, derivações, redução ou ampliação do diâmetro da tubulação.
Os materiais das conexões são os mesmos utilizados na fabricação dos tubos. E as normas que
regulam a fabricação desses acessórios são as seguintes:
- para dimensões e especificação → Norma ANSI 3.31, B 16.9, B 10.11, B 16.5
- para fabricação → Norma ASTM A-232, A105, A.197, A-126
- para especificação de materiais → Norma ASTM P.B 15, PB 15, PB.PB 157
- para símbolos gráficos para desenho de tubulação → Norma N-59 rev.C - set.99
Tipos de conexões
As conexões das tubulações são de diferentes tipos, com diferentes finalidades, como podemos ver
a seguir.
Fig. 14
4” - F301 - A
4”- V301 - BV
B - 31 - A
B - 31 - B
2”302-B4”O302-B
3”O304-B
4” O 303 - B
3” O 305 - B
Tubulações Industriais – Tubos, Acessórios e Válvulas
SENAI/RJ - 35
• Curvas e joelhos
Para mudança de direção.
• Tês, cruzetas e Y
Para derivações ao mudar de direção da tubulação.
• Luvas, niples e uniões
Para ligar tubos entre si ou com algum outro acessório.
• Tampões, bujões e flanges cegos
Para fechamento de extremidades de tubos ou equipamentos.
• Reduções
Para mudar, seja para maior ou menor, o diâmetro da tubulação.
• Flanges
Para fazer a ligação entre tubos ou entre tubos e acessórios.
• Válvulas
Para controlar e interromper o fluxo de uma tubulação.
Todos esses acessórios são fabricados de acordo com o tipo de ligação empregada, ou seja, com o
procedimento adotado para unir tubos entre si, ou tubos com algum acessório ou algum equipamento.
Os procedimentos para ligação podem ser de seis tipos, a saber:
- por solda, de topo ou de encaixe;
- rosqueada;
- flangeada;
- ponta e bolsa;
- compressão.
Vamos analisar, com mais detalhes, cada uma das conexões aqui apresentadas.
Tubulações Industriais – Tubos, Acessórios e Válvulas
36 - SENAI/RJ
Curvas e joelhos
As finalidades das conexões do tipo curva e joelho, como já vimos anteriormente, é propiciar
mudanças de direção da linha. Esses acessórios podem ser dos seguintes tipos:
- joelhos;
- curvas de raio curto;
- curvas de raio longo;
- curva em gomos.
As figuras que seguem mostram algumas conexões desse tipo.
As ligações dessas conexões com os títulos podem ser:
- rosqueadas;
- por solda de topo;
- por solda de encaixe;
- flangeadas.
Curvas e joelhos rosqueados
As curvas e joelhos rosqueados, que vemos nas figuras a seguir, são utilizados para instalações de
água e ar condensado de baixa pressão até 4".
Fig. 15
curva de raio longo
em gomos (90o
)com redução180o
90o
45o
90o
curva de raio curto
Fig. 16
joelho de 45o
tubos
rosca
joelho de 90o
joelho
MONTAGEM
Tubulações Industriais – Tubos, Acessórios e Válvulas
SENAI/RJ - 37
Os materiais usados na fabricação de curvas e joelhos rosqueados são os seguintes:
- aço maleável, como especificado na Norma ASTM-A197;
- ferro fundido, latão ou aço-carbono forjado, como determina a Norma ASTM A.105 a 181, nas
classes de pressão de 125, 150, 300, 2000, 3000 e 6000, com variações de diâmetro de 1/4 a 4".
As dimensões das roscas das curvas e joelhos são normatizados pela Norma API B.2.1 e Norma
API 6A.
Nos desenhos de tubulação, a representação gráfica das curvas e joelhos rosqueados é feita de
acordo com a simbologia do sistema ASA. Vejamos como é feita essa representação em diferentes
vistas e, depois, um exemplo de como ela é aplicada em desenhos de tubulação.
• Representação por símbolos gráficos de curvas e joelhos rosqueados ou solda de encaixa
para plantas de tubulação
• Aplicação dos símbolos de curvas e joelhos rosqueados ou solda de encaixe em plantas de
tubulações
VISTAS
a - vista frontal (elevação)
b e c - vistas laterais (perfil)
d - vista superior (planta)
ab c
d
Fig. 17
Fig. 18
tubo
joelho
vista frontal (elevação)
vista lateral (perfil)
vista superior (planta)
Tubulações Industriais – Tubos, Acessórios e Válvulas
38 - SENAI/RJ
Curvas e joelhos para solda de encaixe
Esses acessórios são utilizados para tubulações que variam de 1/8" a 4", nas classes 200, 3000,
4000 e 6000. Observe as duas figuras.
Os materiais empregados nos joelhos e curvas para solda de encaixe são normalizados pela Norma
ASTM A.105 e A-181 (referente a aços-liga, inox e aço-carbono forjado).
A representação gráfica desse tipo de acessório, para emprego em desenhos de tubulações, é a
mesma empregada para os joelhos rosqueados.
Curvas e joelhos flangeados
As curvas e joelhos flangeados são acessórios bem mais raros do que os de outros tipos, sendo
fabricados com diâmetro de 1" a 24" em ferro fundido e em aço fundido. As duas figuras exemplificam
esse tipo de acessório.
Fig. 20
encaixe
joelho ou curva
solda de encaixe
solda de encaixe tubos
Fig. 19
Tubulações Industriais – Tubos, Acessórios e Válvulas
SENAI/RJ - 39
furos para colocação dos parafusos ou estojos
Fig. 21
flange
Fig. 22
tuboestojos ou parafusos com porca
tubo
As curvas e joelhos flangeados devem obedecer às determinações da Norma ABNT P-PB-15 e
da Norma 16.5, que normalizam esses acessórios em dimensões, pressões e temperaturas de trabalho.
De acordo com a simbologia da Norma N-59 rev.C - set.99 da Petrobras, a representação gráfica
das curvas e joelhos flangeados é feita como ilustramos a seguir. Veja depois um exemplo de desenho
de tubulação, em que essa representação é empregada.
• Representação gráfica para desenho de tubulações
VISTAS
a - vista frontal (elevação)
b e c - vistas laterais (perfil)
d - vista superior (planta)
ab c
d
Fig. 23
Tubulações Industriais – Tubos, Acessórios e Válvulas
40 - SENAI/RJ
• Aplicação dos símbolos gráficos de curvas e joelhos flangeados para desenho de tubulações
Curvas e joelhos para solda de topo
Esses acessórios são empregados em tubulações acima de 2" e fabricadas em aço-carbono, aço-
liga e aço inox forjado, sendo de 30°, 45°, 180°.
A Norma ANSI B.16.9 identifica esse tipo de acessório. E os materiais com que eles são fabricados
são normalizados pela Norma ASTM. A-234, no caso do aço-carbono.
Observe as curvas e joelhos para solda de topo nessas duas figuras.
Fig. 24
vista frontal vista lateral
Fig. 25
biséis
Fig. 26
tubo
tubo
tubo
joelho
solda
solda
Tubulações Industriais – Tubos, Acessórios e Válvulas
SENAI/RJ - 41
Como você pode ver, as extremidades dessas conexões já são preparadas com um chanfro próprio
para solda de topo, como também a extremidade dos tubos.
Veja agora a representação gráfica das curvas e joelhos para solda de topo e respectiva aplicação em
desenhos de tubulações.
• Representação dos símbolos gráficos de curvas e joelhos para solda de topo para desenho
de tubulações
• Aplicação dos símbolos de curvas e joelhos para solda de topo em desenho de tubulações
Tês, cruzetas e Y
Observe as figuras que mostram, respectivamente, um tê, uma cruzeta e um Y em 45º, acessórios
de tubulações que têm a finalidade de fazer derivações, vínculos e mudar direções.
Fig. 27
Fig. 28
VISTAS
a - vista frontal (elevação)
b e c - vistas laterais (perfil)
d - vista superior (planta)
(a)(b) (c)
(d)
Tubulações Industriais – Tubos, Acessórios e Válvulas
42 - SENAI/RJ
Os tês, cruzetas e Y admitem diferentes tipos de ligações, que podem ser rosqueadas, solda de
topo, solda de soquete e flangeada. Veja exemplos desses tipos de ligações nas figuras que seguem.
• Tê rosqueado
• Cruzeta para solda de encaixe
Fig. 29
Fig. 30
Fig. 31
Fig. 32
tubo
Fig. 33
tubo
tubo solda
solda tubo
Tubulações Industriais – Tubos, Acessórios e Válvulas
SENAI/RJ - 43
• Tê ou Y 45º flangeado
As normas para cada um desses acessórios e de seus tipos de ligações são as mesmas dos acessórios
já trabalhados até aqui.
A representação gráfica dos tês, cruzetas e Y, de acordo com a simbologia da norma N-59
rev.C - set.99 da Petrobras, é mostrada nas figuras que seguem.
Observe com atenção.
• Representação dos símbolos gráficos de tês, cruzetas e Y para desenho de tubulações
Fig. 34
tubo
tuboflange
tês cruzetas “Y” a 45o
rosqueadoe
soldadeencaixesoldadetopoflangeadas
Fig. 35
Tubulações Industriais – Tubos, Acessórios e Válvulas
44 - SENAI/RJ
• Aplicação dos símbolos gráficos de tês, cruzetas e Y para desenhos de tubulações
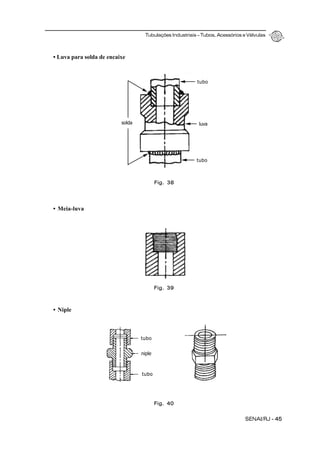
Luvas, niples e uniões
As luvas, niples e uniões têm a finalidade de fazer a ligação de tubos entre si ou com algum
equipamento. Esses acessórios, quanto ao tipo de ligação, podem ser: rosqueados, solda de encaixe, e
solda de topo (só acima de 2"). Veja alguns exemplos nas figuras que seguem.
• Luva rosqueada
cruzeta com rosca ou solda de encaixe “Y” com solda do topo
cruzeta flangeada tê com solda do topo
Fig. 37
tubo
Fig. 36
luva
tubo
Tubulações Industriais – Tubos, Acessórios e Válvulas
SENAI/RJ - 45
• Luva para solda de encaixe
• Meia-luva
• Niple
Fig. 38
tubo
tubo
luvasolda
Fig. 39
Fig. 40
tubo
tubo
niple
Tubulações Industriais – Tubos, Acessórios e Válvulas
46 - SENAI/RJ
• União montada
• União desmontada
Agora observe alguns exemplos de montagem de instrumentos com o emprego de luvas, niples e
uniões, entre outros acessórios.
Fig. 41
união
tubo tubo
Fig. 43
união
tubo
tubo
Fig. 42
bucha de red. φ 2” x 3/4”
material de acordo com
especificação da tubulação
luva de redução
niple φ 2” x 50mm
tubo tê φ 2”
tubo φ 2” x 100mm
Tubulações Industriais – Tubos, Acessórios e Válvulas
SENAI/RJ - 47
Também no caso das luvas e das uniões, a representação gráfica a ser empregada nos desenhos de
tubulações é feita de acordo com a simbologia da norma N-59 rev.C de set.99 da Petrobras.
Lembramos que não há uma representação isolada para os niples, mas somente em planta.
Então vejamos a representação gráfica das luvas e das uniões e, também, alguns exemplos em que
essa representação é aplicada.
curva φ 3”
Fig. 44
redução concêntrica ou
excêntrica conforme
conveniência da tubulaçãoluva φ 3/4 x 300
Fig. 45
luva φ 3/4 3000 (pela tubulação)
redução concêntrica ou
excêntrica conforme
conveniência da tubulação
tubo φ 4”
Tubulações Industriais – Tubos, Acessórios e Válvulas
48 - SENAI/RJ
• Representação dos símbolos gráficos de luvas e uniões para desenhos de tubulações
• Aplicação dos símbolos de luvas, niples e uniões em desenhos de tubulações
luva união
rosqueado
e solda de
encaixe
solda de
topo
planta e elevação
meia luva soldada
tubo
tubo
planta e elevação
Fig. 46
Fig. 47
Fig. 48
tubo
meia luva soldada
niple
válvula
luva
plug
união
luva
não é aplicável
Tubulações Industriais – Tubos, Acessórios e Válvulas
SENAI/RJ - 49
Tampão (ou caps) e bujões ou plugs
Os tampões, também chamados de caps, e os bujões, conhecidos por plugs, têm a finalidade de
fechar as extremidades de tubos, válvulas, instrumentos ou equipamentos. O tipo de ligação desses
acessórios pode ser rosqueado, por solda de encaixe e solda de topo.
Veja alguns tampões com diferentes tipos de ligação.
Agora observe um bujão.
Os bujões podem ser de diferentes tipos, de acordo com o tipo de cabeça, como mostrado nesta
outra figura.
Fig. 49
união
Fig. 50
Fig. 51
bujão
tubo
tubo
Tubulações Industriais – Tubos, Acessórios e Válvulas
50 - SENAI/RJ
A representação dos tampões e dos bujões, em conformidade com a norma N-59 rev.C da
Petrobras, bem como a sua aplicação em desenhos de tubulações é o que veremos a seguir.
• Representação dos símbolos gráficos dos tampões e bujões para desenho de tubulações
• Aplicação dos símbolos gráficos dos tampões e bujões para desenho de tubulações
Fig. 52
cabeça cilíndrica cabeça sextavada cabeça quadrada
tampões ou caps bujões ou plugs
rosqueadoou
soldadeencaixesoldadetopo
plugs
não é aplicável
Fig. 53
Fig. 54
tampão
luva soldada
niple
válvula
plug
3 – 0 – 32
redução – 4” x 3”
plug
Tubulações Industriais – Tubos, Acessórios e Válvulas
SENAI/RJ - 51
Exemplos de desenhos típicos para montagem de instrumentos
Reduções
As reduções têm a finalidade de mudar, para maior ou para menor, o diâmetro de uma tubulação,
podendo utilizar os seguintes tipos de ligações: rosqueadas, soldas de encaixe, solda de topo e flangeada.
São vários os tipos de redução, dentre os quais destacamos: tês, curvas ou joelhos de 90°e de 45°,
luvas, reduções concêntricas e excêntricas, niples e buchas.
Tê de redução
Essas reduções são fabricadas para ligações com rosca, com solda de topo, solda de encaixe e
flange. Os materiais mais utilizados nos tês de redução são o aço-carbono ASTM A.234 e o aço
forjado. A Norma ANSI B.16.9 e a Norma ANSI B.31 estabelecem a faixa de pressão até 2000.
Na figura que segue podemos ver alguns tês de redução, cada qual com um tipo distinto de ligação.
Observe com atenção.
Fig. 55
niple
niple
tê
união
bujão
instrumento (P1)
luva
niple
tubo
válvula
p/tub p/instr.
p/tubp/instr.
Tubulações Industriais – Tubos, Acessórios e Válvulas
52 - SENAI/RJ
Curvas ou joelhos de redução
São fabricados para ligações rosqueadas, com solda de topo ou solda de encaixe, segundo a Norma
ANSI B 16.9, Norma ANSI B 16.11 e a Norma ASTM A 105 a 181.
Nesta figura você pode ver um joelho de redução (90°).
Fig. 56
rosqueado flangeado
Fig. 57
redução tubo φ menor
solda φ maior
tubo φ maior
Tubulações Industriais – Tubos, Acessórios e Válvulas
SENAI/RJ - 53
Luvas de redução
Esse tipo de redução é empregado em ligações rosqueadas e nas ligações com solda de encaixe.
São fabricadas com diâmetro de 1/4" a 6" em ferro maleável e em aço forjado, de acordo com as
determinações da Norma ASTM A. 197, Norma ASTM A - 105 e Norma ANSI B 16.11.
Veja, na figura, uma luva de redução rosqueada.
E agora, nessa outra figura, temos uma luva de redução para solda de encaixe.
Reduções concêntricas e excêntricas
Essas reduções são fabricadas para ligações de solda de topo segundo a Norma ANSI B 16.9 e
a Norma B 16.31, para diâmetros (Ø) de 1/2" a 24".
As reduções flangeadas, quando fabricadas em aço fundido de diâmetros compreendidos entre 2"
e 24", a pressões de 150° a 1500°, obedecem à Norma ANSI 13.16.5. Quando elas são de ferro
fundido, com diâmetro a partir de 1" até 24", a pressões de 125° a 250°, são normatizadas pela Norma
ABNT P.PB. 15.
Fig. 58
Fig. 59
tubo φ menor
luva de redução
tubo φ maior
Tubulações Industriais – Tubos, Acessórios e Válvulas
54 - SENAI/RJ
Vamos ver, então, alguns tipos de reduções concêntricas e excêntricas. Nessa primeira figura temos
uma redução côncava para solda de topo.
E nessa outra, podemos observar uma redução excêntrica para solda de topo.
Finalmente, nas duas figuras que seguem temos, respectivamente, uma redução flangeada excêntrica
e, depois, uma redução flangeada concêntrica.
Fig. 60
Fig. 61
tubo φ maior
redução excêntrica
tubo φ menor
Fig. 63
Fig. 62
Tubulações Industriais – Tubos, Acessórios e Válvulas
SENAI/RJ - 55
A simbologia ASA aplicada na representação gráfica das reduções concêntricas e excêntricas
pode ser analisada logo a seguir, como também um exemplo de aplicação dessa representação em
desenhos de tubulações.
• Representação dos símbolos gráficos de reduções concêntricas e excêntricas para
desenho de tubulações
• Aplicação dos símbolos gráficos de reduções concêntricas e excêntricas em desenhos
de tubulações
Fig. 64
rosqueado e
solda de encaixe
solda de topo
6 x 4
flangeado
reduções
concêntricas
reduções
excêntricas
4 x 2 6 x 4
6 x 44 x 26 x 4
Fig. 65
redução concêntrica
6”x 4”
V31
redução
6”x 6”x 4”
4”– A – 405
redução excêntrica
6”x 4”
redução excêntrica
6”x 4”
Tubulações Industriais – Tubos, Acessórios e Válvulas
56 - SENAI/RJ
Niples de redução
A aplicação mais comum dos niples de redução é para diâmetro de até 4", rosqueados ou com solda
de encaixe.
De acordo com as extremidades, os niples de redução se diferenciam e recebem diferentes nomes,
que vamos ver agora, juntamente com a figura que ilustra cada um deles.
• BET (Both End Thread)
Para extremidades rosqueadas.
• BEP (Both End Plain)
Para extremidades lisas.
• LET-SEP (Lang End Thread - Small And Plain)
Para extremidade maior rosqueada e extremidade menor plana.
Fig. 66
Fig. 67
Fig. 68
Tubulações Industriais – Tubos, Acessórios e Válvulas
SENAI/RJ - 57
• LEP-SET (Lange And Plain - Small And Thred)
Para extremidade maior lisa e extremidade menor rosqueada.
Nesta outra figura, você pode observar um exemplo de aplicação de niples de redução e de tê de
redução.
Os tês, luvas e niples de redução não têm uma simbologia específica para representação gráfica
em desenhos de tubulações. Por isso, são utilizados os símbolos normais, porém escrevendo-se as
especificações de reduções próximas aos diâmetros nominais.
Veja os símbolos gráficos de tês e luvas de redução para desenhos de tubulação, de acordo com a
norma N-59 rev.C set.99 da Petrobras.
Fig. 69
Fig. 70
2"
Fig. 71
3"
niple 3"
união 3" válvula 2" válvula
retenção
união 3"
niple
normal
niple de redução 3" x 2" (LEP-SET)
redução 3" x 3" x 2"
luva de redução
4" x 3"
3"
Tê de red. 3" X 2"
Tubulações Industriais – Tubos, Acessórios e Válvulas
58 - SENAI/RJ
Buchas de redução
As buchas de redução são geralmente rosqueadas, com dimensões de 1/2" a 4", e de aço forjado,
segundo a Norma ASTM A. 105, com classe de pressão de 2000, 3000 a 6000.
A título de exemplo, observe uma bucha de redução rosqueada.
Flanges
Os flanges são acessórios destinados a fixar tubos entre si ou tubos com válvulas ou, ainda, com
bocais de equipamentos como bombas, compressores, permutadores, torres e outros. Eles possibilitam
maior facilidade de desmontagem que os demais tipos de ligações.
As normas ANSI B.16.5 (American National Standard Institute) padronizam dimensões nominais
de flanges de 1/2" até 24’ de diâmetro. As normas também estabelecem faixas de temperatura, que
variam de 100o
C a 1000o
C, a pressões de serviço que variam de 1000 a 2500PSI. As pressões são
agrupadas em 7 classes que são: 150, 300, 400, 600, 1500 e 2500PSI.
Fig. 72
tubo φ menor
tubo φ maior
bucha de redução
Fig. 73
parafusos
porca
tubo
tubo
flanges
equipamento
flange
flange
Tubulações Industriais – Tubos, Acessórios e Válvulas
SENAI/RJ - 59
Os tipos de flanges mais comum são:
- integral;
- de pescoço;
- rosqueado;
- sobreposto;
- de encaixe;
- solto;
- cego;
- flange com placa de orifício (para instrumentos).
Vamos comentar e ilustrar alguns desses flanges.
Flange integral
Esse tipo de flange é antigo, bastante resistente, e restrito ao tubo de ferro fundido. Veja um flange
integral na figura.
Flange de pescoço (Welding Neck Wn)
É o flange mais usado em tubulações industriais, sendo bastante resistente. Ele é ligado ao tubo por
uma solda de topo. Os tubos devem ter as extremidades biseladas para permitir a soldagem. Por isso,
esse tipo de flange é de custo maior que os demais.
Fig. 74
tubo
furos para
parafusos e porcas
Tubulações Industriais – Tubos, Acessórios e Válvulas
60 - SENAI/RJ
Observe um flange de pescoço.
Veja um exemplo de aplicação de flange de pescoço.
Flange rosqueado (Screwed Scr)
É aplicado principalmente em tubos de materiais não-soldáveis, tais como ferro fundido e alguns
aços-ligas não-soldáveis. São bastante empregados em tubulações para água e ar comprimido.
Nas duas figuras que seguem observe, primeiramente, um flange rosqueado. E, logo depois, um
exemplo de aplicação desse tipo de flange.
Fig. 75
pescoço
Fig. 76
Fig. 77
pescoço tubo
solda
flange Bflange A
tubo B
tubo A
porcas
parafusos
flange tubo
Tubulações Industriais – Tubos, Acessórios e Válvulas
SENAI/RJ - 61
Flange sobreposto (Slip on - SO)
É aplicado em serviço de baixas pressões e temperaturas. Tem custo baixo, sendo de fácil montagem
e alimento.
A figura ilustra um flange sobreposto.
E nesta outra figura podemos ver um exemplo de aplicação de flange sobreposto.
Fig. 78
flange Bflange A
tubo Btubo A
Fig. 80
Fig. 79
flanges
tubo Btubo A
solda em ângulo
tubo
solda solda
Tubulações Industriais – Tubos, Acessórios e Válvulas
62 - SENAI/RJ
Flange cego
É o flange que tem a finalidade de fechar extremidades de tubos. É necessário que haja na
extremidade do tubo um flange qualquer, para que possa haver a fixação do flange cego.
Veja um flange cego.
Observe também um exemplo de aplicação do flange cego nesta outra figura.
Vejamos agora como é feita a representação gráfica de flanges, de acordo com a simbologia do
sistema ASA; depois observe três exemplos de aplicação dessa representação em desenhos de
tubulações.
Fig. 81
solda
Fig. 82
tubo
flangeflange cego
junta
Tubulações Industriais – Tubos, Acessórios e Válvulas
SENAI/RJ - 63
• Representação dos símbolos gráficos de flanges
• Aplicação da representação dos símbolos gráficos de flanges para desenhos de tubulações
Fig. 83
rosqueado ou
solda de encaixe
sobreposto pescoço virola cego
flange cego
flange
de
pescoço
Fig. 84
Fig. 85
suporte
flange cego
8” – AJ – 513 – 12 – A
8” – AJ – 513 – 12 – A
400
360700
flange
sobreposto
flange de
pescoço
Tubulações Industriais – Tubos, Acessórios e Válvulas
64 - SENAI/RJ
Flange com placa de orifício
Esse tipo de flange é o flange sobreposto ou o de pescoço ou, ainda, o rosqueado que sofre adaptações
para permitir a colocação de uma placa de orifício, de modo a tornar possível a medição de vazão. Em
cada flange há 2 furos roscados para tomadas de pressão para os instrumentos.
Fazer medição com placas de orifício é o meio mais sensível, barato e mais utilizado em planta de
processo. A placa com um orifício é inserida na linha, de forma que restringe a seção do fluxo,
causando uma variação de pressão que está em relação com o fluxo que circula. O tubo Venturi ou o
tubo de Pilot são similares em princípio, sendo utilizados quando são especificados pela engenharia de
instrumentação.
As placas de orifício são colocadas entre dois flanges apropriados, denominados flanges de orifício,
e utilizadas em linha de processo de 2" a 12" de diâmetro. As normas ANSI B 16.20 regulam as
dimensões dos diversos tipos de flanges de orifício. A maioria dos materiais de fabricação dos flanges
é da norma ASTM A.105 gr.2. Os parafusos e porcas são ASTM A.307 gr.B, com dimensões e tipos
das normas ANSI 13.2.1. As juntas são idênticas às dos flanges comuns.
A figura mostra um flange com placas de orifício.
A seguir você verá como os flanges com placa de orifício são representados graficamente e, logo
depois, vai analisar o exemplo de aplicação dessa simbologia.
Fig. 86
placa de orifício
flange
tubo
tubulação de impulso
(tubing)
flange
tubo
Tubulações Industriais – Tubos, Acessórios e Válvulas
SENAI/RJ - 65
• Representação gráfica de flanges com placa de orifícios para instrumentação
A norma ISA S 5.1 – Instrumentation Symbols and Identification é aplicada para simbologia e
identificação dos símbolos para instrumentação.
• Flange de orifício (desmontado)
Fig. 87
placa de orifício (tomada
de pressão no próprio)
placa de orifício conectado
a um indicador de fluxo
tipo pressão diferencial
placa de orifício com tomada
via contraída ou no tubo
placa de orifício com tomada
na via contraída ou no tubo
conectado a um transp. de
fluxo tipo pressão diferencial
tomada de teste em via
contraída ou no tubo
sem a placa de orifício
placa de orifício e
equipamento de troca rápida
parafuso
tubo
placa
de orifício
Fig. 88
bujão
juntas
flange (de pescoço)
tubo
porca
arruela
Tubulações Industriais – Tubos, Acessórios e Válvulas
66 - SENAI/RJ
Exemplo de instalação típica de instrumentação em uma tubulação
Válvulas
As válvulas são dispositivos que permitem controlar ou interromper o fluxo em uma tubulação,
sendo um dos acessórios mais importantes. Neste item vamos mostrar as diversas válvulas e seus
respectivos símbolos gráficos para o desenho de tubulações e fluxogramas, sem entrar em detalhes
sobre seu funcionamento ou aplicação.
Fig. 89
válvula globo
Fig. 90
FE - Elemento primário do fluxo
FT - Transmissor ou fluxo
FIC - Indicador e controlador de fluxo
0 – 210 – 6" – 3BA
0 – 210 – 6" – 3BA
0 – 215 – 3" – 2B
0–212–2"–3BA
0–212–2"–3BA
1 ½"
2"
FC ¾
Tubulações Industriais – Tubos, Acessórios e Válvulas
SENAI/RJ - 67
A inspeção e os testes de válvulas são normatizados pela Norma API-598. Já as dimensões, os
materiais de controle, as condições de trabalho, os testes de aceitação para refinarias de alguns tipos
de válvulas devem obedecer às determinações da Norma ABNT EB-141, Norma P-PB-37 e Norma
ANSI -B-16.10.
Classificação das válvulas
Considerando a finalidade das válvulas nas tubulações de processo, elas são classificadas em três
grandes grupos, a saber:
- válvulas que controlam o fluxo em qualquer direção;
- válvulas que permitem o fluxo em uma só direção;
- válvulas controladoras de pressão.
Cada uma dessas válvulas, por sua vez, podem ser de tipos variados, como vemos neste esquema.
1. válvulas que controlam o
fluxo em qualquer direção
de bloqueio
de regulagem
de gaveta
de macho
de esfera
de globo
de agulha
de borboleta
de diafragma
de controle
2. válvulas que permitem fluxo
em uma só direção
de retenção de levantamento e de pé
de retenção de “portinhola”
de retenção de “esfera”
de retenção e fechamento
3. válvulas controladoras de
pressão
a jusante
a montante
redutiva de pressão
reguladora de pressão
de segurança e alívio
de contrapressão
Tubulações Industriais – Tubos, Acessórios e Válvulas
68 - SENAI/RJ
Tipos de ligações das válvulas
As extremidades das válvulas devem estar em conformidade com a Norma ANSI 11.31. E as
extremidades dos tubos, para aplicação das válvulas, podem ser de diferentes tipos.
Extremidade rosqueada
É aplicada em válvulas de 4" ou menos, sendo empregada em tubulações em que as ligações
rosqueadas são permitidas.
Extremidade para solda de encaixe
Aplicada em válvulas de aço de menos de 2", e empregada em tubulações por solda de encaixe.
Extremidade flangeada
Esse tipo de extremidade é aplicada em quase todas as válvulas, de qualquer material, e empregada
em tubulações industriais de 2" ou maiores.
Extremidade para solda de topo
Aplicadas em válvulas de aço de mais de 2", em serviços com pressões muito altas ou com fluidos
em que se exijam absoluta vedação e nenhum risco de vazamento.
Tipos de válvulas e respectivas simbologias para desenhos
Vejamos agora, por meio de figuras, os diferentes tipos de válvulas que acabamos de analisar e a
simbologia empregada para representá-las em desenhos de tubulações.
Observe cada caso com atenção.
Válvulas que controlam o fluxo em qualquer direção
A seguir apresentamos as válvulas que controlam o fluxo em qualquer direção e, logo depois de
cada uma, você encontrará a simbologia adotada para representar graficamente essas válvulas em
desenhos de tubulações.
Tubulações Industriais – Tubos, Acessórios e Válvulas
SENAI/RJ - 69
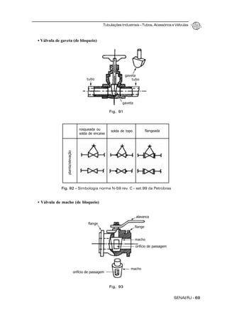
• Válvula de gaveta (de bloqueio)
• Válvula de macho (de bloqueio)
Fig. 91
gaveta
tubotubo
gaveta
rosqueada ou
solda de encaixe
solda de topo flangeada
planta/elevação
Fig. 92 – Simbologia norma N-59 rev. C - set.99 da Petrobras
Fig. 93
alavanca
flange
orifício de passagem
macho
macho
orifício de passagem
flange
Tubulações Industriais – Tubos, Acessórios e Válvulas
70 - SENAI/RJ
• Válvula de esfera (de bloqueio)
rosqueada ou
solda de encaixe
solda de topo flangeada
planta/elevação
Fig. 94 – Simbologia norma N-59 rev. C - set.99 da Petrobras
Fig. 95
rosqueada ou
solda de encaixe
solda de topo flangeada
planta/elevação
Fig. 96 – Simbologia norma N-59 rev. C - set.99 da Petrobras
esfera
Tubulações Industriais – Tubos, Acessórios e Válvulas
SENAI/RJ - 71
• Válvula de globo (de regulagem)
• Válvula de agulha (de regulagem)
rosqueada ou
solda de encaixe
solda de topo flangeada
planta/elevação
Fig. 98 – Simbologia norma N-59 rev. C - set.99 da Petrobras
Fig. 97
Fig. 99
globo
agulha
Tubulações Industriais – Tubos, Acessórios e Válvulas
72 - SENAI/RJ
• Válvula de borboleta (de regulagem)
rosqueado ou
solda de encaixe
solda de topo flangeada
planta/elevação
Fig. 100 – Simbologia norma N-59 rev. C - set.99 da Petrobras
rosqueada ou
solda de encaixe
solda de topo flangeada
planta/elevação
Fig. 102 – Simbologia norma N-59 rev. C - set.99 da Petrobras
Fig. 101
Tubulações Industriais – Tubos, Acessórios e Válvulas
SENAI/RJ - 73
• Válvula de diafragma (de regulagem)
• Válvula de controle (de regulagem) - Norma ISA RP41 (para dimensões); norma S.51
(para simbologia)
rosqueada ou
solda de encaixe
solda de topo flangeada
planta/elevação
Fig. 104 – Simbologia norma N-59 rev. C - set.99 da Petrobras
Fig. 103
diafragma
fechado
aberto
Fig. 105
diafragma
de ar
haste
Tubulações Industriais – Tubos, Acessórios e Válvulas
74 - SENAI/RJ
Ainda em relação às válvulas de controle, observe, nesta outra figura, os símbolos empregados
para a sua representação gráfica em fluxogramas.
Válvulas que permitem fluxo em uma só direção
Agora, para esse grupo de válvulas, primeiro vamos apresentar a ilustração de cada uma delas
somente depois, ao final, apresentaremos a representação gráfica, uma vez que nesse grupo não há
uma simbologia específica para cada tipo em separado.
rosqueado ou
solda de encaixe
solda de topo flangeada
planta/elevação
Fig. 106 – Simbologia norma N-59 rev. C - set.99 da Petrobras
Fig. 107 – Simbologia norma N-59 rev. C - set.99 da Petrobras
operada por
êmbolo hidráulico
operada por motor operada por solenóide válvula auto atuada
de diafragma
transmissão pneumática entre
instrumento e válvula de
diafragma
controle manual em
linha de processo
atuador manual
Tubulações Industriais – Tubos, Acessórios e Válvulas
SENAI/RJ - 75
Acompanhe as figuras com bastante atenção.
• Válvula de retenção de levantamento
• Válvula de retenção de portinhola
• Válvula de retenção de esfera
Fig. 108
Fig. 109
Fig. 110
saídaentrada
tampão
tampo pino
flange de saída
saída
flange de
entrada
entrada
sede tampão
saída
entrada
esfera
Tubulações Industriais – Tubos, Acessórios e Válvulas
76 - SENAI/RJ
• Válvula de retenção de fechamento
• Representação gráfica das válvulas de retenção para desenhos de tubulação
• Representação gráfica das válvulas de retenção para fluxogramas
Fig. 111
haste rosqueada
guia
entrada
Fig. 112 – Simbologia norma N-59 rev. C - set.99 da Petrobras
rosqueado ou
solda soquete
solda de topo flangeada
plantae
elevação
plantae
elevação
retenção e
fechamento
somente
retenção
Fig. 113
retenção retenção e fechamento
haste do tampão
tampão
saída
Tubulações Industriais – Tubos, Acessórios e Válvulas
SENAI/RJ - 77
• Válvulas controladoras de pressão
Dentre os diferentes tipos de válvula que compõem esse grupo, apresentamos aqui, a título de
exemplo, apenas a válvula reguladora de pressão, que você vê nesta figura.
Observe como é feita a representação gráfica dessa válvula em desenhos de tubulações.
Já neste outro quadro que segue, você poderá analisar a simbologia empregada para representar
graficamente as válvulas de segurança e alívio, que também são do tipo controladoras de pressão.
Fig. 114
bocal de entrada
sede
tampão
bocal de saída
mola
porca de regulagem
Fig. 115 – Simbologia norma N-59 rev. C - set.99 da Petrobras
rosqueada ou
solda de encaixe solda de topo flangeada
plantaeelevação
mola com peso mola com peso mola com peso
Tubulações Industriais – Tubos, Acessórios e Válvulas
78 - SENAI/RJ
Fig. 116 – Simbologia norma N-59 rev. C - set.99 da Petrobras
angular (mola peso ou
piloto integral)
reta (mola, peso ou
piloto integral angular para vácuo
angular (para pressão e vácuo) angular atuada pela
solenóide integral
disco de rutura para
pressão e para vácuo
Tubulações Industriais – Tubos, Acessórios e Válvulas
SENAI/RJ - 79
Praticando
1. Cite alguns objetivos das normas de tubulações.
2. Cite os principais processos de fabricação de tubos sem costura.
3. Considerando os tubos com costura e os tubos sem costura, responda às questões:
a) Qual dos dois é de maior resistência?
b) Qual deles é de uso mais freqüente?
c) Qual é o de mais baixo custo?
4. Quais são os dois processos empregados para enrolar as chapas para serem soldadas?
5. Qual é o principal material utilizado na fabricação de tubos?
6. Cite alguns fatores que influenciam na escolha do material da tubulação, em uma unidade de
processo.
7. Quais são as três dimensões principais de um tubo?
8. Relacione os tipos de extremidades de tubos.
9. Para um tubo de 24", determine:
a) o seu diâmetro externo.
b) o seu interno.
c) a espessura para SCH 30 e SCH 60.
10. Desenhe o modo como são representadas:
a) as linhas de processo.
b) as linhas de sinal pneumático.
c) as linhas de sinal hidráulico.
Desenho isométrico
de tubulações
2
Nesta seção...
Isométricos
Simbologia de tubulações para desenhos isométricos
Exemplos de desenhos isométricos
Identificação dos elementos da tubulação em desenhos isométricos
Praticando
Tubulações Industriais – Desenho Isométrico de Tubulações
SENAI/RJ - 83
Projetos
O projeto de uma rede ou de um sistema de tubulações pode ser um projeto isolado ou, como é
mais freqüente, fazer parte de um projeto integrado de uma instalação industrial de processo completo,
que inclui também várias outras especialidades de engenharia.
Nos casos de um projeto global de uma instalação industrial, é prática corrente subdividi-lo em
partes que são, por exemplo: projetos de processamento, de construção civil, de elétrica, de
instrumentação e de tubulações, aí incluindo os fluxogramas, as plantas de locação, as plantas de
tubulações propriamente ditas e os desenhos isométricos.
É desses desenhos que trataremos neste segundo bloco de estudos, de modo que você possa
esboçar planta baixa e fazer desenhos isométricos das tubulações corretamente.
Isométricos
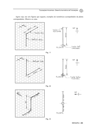
Chamamos de isométricos os desenhos feitos em perspectiva isométrica, segundo os princípios
técnicos apresentados no material didático referente a desenho técnico e a partir da planta baixa.
No desenho isométrico não são usadas escalas, embora seja mantida uma determinada proporção
entre as dimensões. Geralmente, faz-se um isométrico para cada tubulação individual de um grupo de
tubulações próximas. Os tubos e as curvas, quaisquer que sejam seus diâmetros, são representados
por um traço único, na posição de sua linha de centro.
Aplicação dos desenhos isométricos
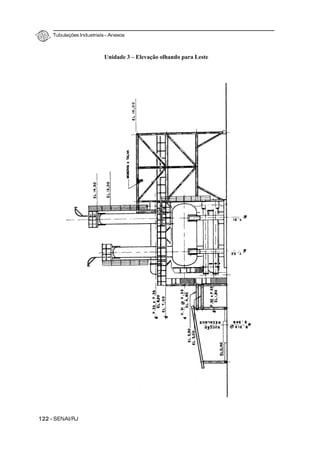
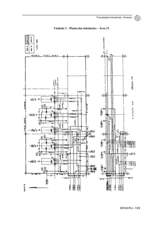
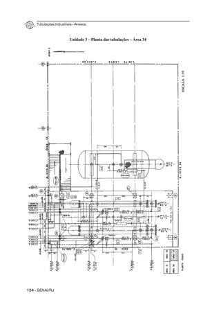
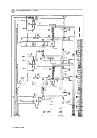
Os isométricos são aplicáveis para trechos da tubulação onde ocorram, conjuntamente, mudanças
de direção,bifurcação, bloqueio etc. impossíveis de serem representados em plantas. Normalmente, os
isométricos não são aplicados em trechos retos de tubulações.
Os desenhos isométricos fornecem dimensões de trechos de tubos, ângulos, raios, curvaturas,
elevações de todos os tubos, localização e orientação de todos os bocais de vasos e equipamentos
ligados à tubulação representada. Eles dão uma visão espacial de um segmento de tubulação, que
deve ser tomada como base para verificação de controle dimensional.
Tubulações Industriais – Desenho Isométrico de Tubulações
84 - SENAI/RJ
Um dos principais objetivos e aplicações dos desenhos isométricos é o de orientar a construção do
spool e do desenho isométrico simplificado, que veremos adiante.
Desenho de spools
São desenhos fabricados a partir dos desenhos isométricos, sendo, portanto, trechos da tubulação
contida num isométrico. Cada spool representa a ligação de um certo número de acessórios e de
trechos de tubos em tubulação soldada.
Dentre outros desenhos auxiliares de montagem, o spool permite que todos os trechos da tubulação
que contêm pedaços pequenos de tubos e de conexões sejam pré-fabricados, isto é, ligados fora do
local de montagem.
Veja desenho típico de spool.
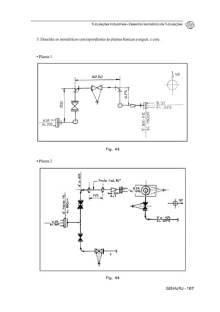
Isométrico simplificado
Essa é outra aplicação do isométrico, empregado para montagem de instrumentos.
Na figura que segue você pode ver um desses desenhos.
Fig. 1 – Tolerâncias de pré-montagem de tubulações
1 distância entre faces de flanges, entre linhas de centro
e entre face de flange e linha de centro ± 3mm
2 raio de curvatura de tubos curvados ± 3% do diametro
nominal
3 deslocamento do flange ou da derivação ± 1,5mm
4 rotação do flange (medida como indicado) ± 1,5mm
5 paralelismo da face do flange ± 1,5mm ou ± 1/2o
(o menor)
6 desalinhamento entre linhas de centro ±1,5mm
7 comprimento a mais nas soldas de campo:
até φ 4”: 100mm
mais de φ 4”: 150 a 200mm
obs.: as tolerâncias não são acumulativas.
Tubulações Industriais – Desenho Isométrico de Tubulações
SENAI/RJ - 85
Fig. 2
Tubulações Industriais – Desenho Isométrico de Tubulações
86 - SENAI/RJ
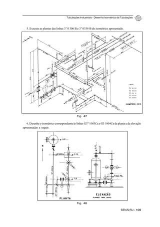
Folha típica de desenho isométrico
Nas empresas que executam projetos, os isométricos são desenhados em folhas de papel especiais,
com as linhas isométricas (30°) bem claras que já estão traçadas, de modo a facilitar o desenhista.
Veja um exemplo reduzido de uma folha típica para desenhos isométricos, com linhas traçadas na
horizontal e na vertical.
Como você deve ter observado, a folha para isométrico possui um espaço para a legenda e também
um espaço para a lista de componentes, tubos, conexões, flanges etc., contidos no trecho de tubulação
ali representado.
Observe, nesta outra figura, um modelo de lista de material e legenda.
Fig. 3
espaço para a simbologia
e lista de componentes da linha LEGENDA
Tubulações Industriais – Desenho Isométrico de Tubulações
SENAI/RJ - 87
Fig. 4
Toda folha de isométrico tem uma numeração que deve ser combinada com a numeração das
plantas, de maneira que seja fácil identificar em qual planta está representada uma linha que aparece
em determinado isométrico e vice-versa. Por exemplo, a planta n° 42 corresponde à série de isométricos
começada pelo n° 4.202. Já a planta n° 52 corresponde à série começada pelo n° 5.201, e assim por
diante.
As folhas de desenhos isométricos (assim como as plantas) também devem apresentar a indicação
da orientação, isto é, o Norte de Projeto (NP), para possibilitar a localização dos tubos e equipamentos
no terreno. Torne a observar o exemplo de folha de isométrico mostrada anteriormente e veja que o
NP está assinalado em seu canto superior direito.
LISTA DO MATERIAL
POS. NO
. ESPECIFICAÇÃO QUANT.
TUBOS
CONEXÕES
FLANGES
OUTROS
CARIMBO
ESPECIFICAÇÃO . ___
NO
. REQUERIDO . ___
3
2
1
REVISÃO
NO
. PROJETO
PROJETO VERIF. APROV. DATA
LINHA NO
. ESCALA FOLHA
Tubulações Industriais – Desenho Isométrico de Tubulações
88 - SENAI/RJ
Há símbolos especiais para indicar o Norte do Projeto – NP ou N. Nas figuras que seguem você
pode observar a simbologia empregada em plantas e em isométricos.
E agora veja os símbolos empregados para indicar o NP, quando se trata de desenhos isométricos.
Simbologia de tubulações para
desenhos isométricos
Agora, neste item, vamos ver como os diferentes elementos de uma tubulação - tubos, acessórios
e válvulas - são representados em desenhos isométricos.
Representação de tubos em isométricos
Nos desenhos isométricos, os tubos verticais são representados por traços verticais, e os tubos
horizontais são representados por traços inclinados a 30° para a direita ou para a esquerda, dependendo
da orientação no Norte do Projeto (NP).
Fig. 5 – Para plantas
Fig. 6 – Para isométricos
Tubulações Industriais – Desenho Isométrico de Tubulações
SENAI/RJ - 89
Agora veja, nas seis figuras que seguem, exemplos de isométricos acompanhados da planta
correspondente. Observe as cotas.
Fig. 7
Fig. 8
Fig. 9
Tubulações Industriais – Desenho Isométrico de Tubulações
90 - SENAI/RJ
Fig. 10
Fig. 11
Fig. 12
Tubulações Industriais – Desenho Isométrico de Tubulações
SENAI/RJ - 91
Tubos fora das direções ortogonais
Os tubos fora de qualquer uma das direções ortogonais são representados por traços inclinados
com ângulos diferentes de 30º. No desenho deve ser indicado o ângulo verdadeiro de inclinação do
tubo, com qualquer uma das três direções ortogonais básicas. Para facilitar o entendimento, é comum
desenhar, em traços finos, o plano do ângulo ou do paralelogramo do qual a direção inclinada do tubo
seja diagonal.
Vamos analisar o exemplo ilustrado a seguir, em que vemos o tubo com mudança de direção, porém
dentro do plano vertical. Observe que na anotação 45º V, a letra V significa vertical.
Agora, nesta outra figura, veja o tubo com mudança de direção dentro do plano horizontal. Na
anotação 45º H, a letra H significa horizontal. Em qualquer dos dois planos, então, é necessário cotar
os dois catetos e o ângulo seguido das letras V ou H, de acordo com o caso.
Fig. 13
Fig. 14
Tubulações Industriais – Desenho Isométrico de Tubulações
92 - SENAI/RJ
Quando um trecho do tubo muda de direção e de plano, ficando também fora das direções ortogonais,
a representação é feita envolvendo-se a linha por um polígono, como mostrado neste exemplo.
Método de cotagem para tubos fora dos planos ortogonais
São várias as situações em que os tubos estão fora dos planos ortogonais, exigindo métodos de
cotagem diferentes. Vejamos essas situações e esses métodos.
• Trecho inclinado de 45° no mesmo plano (horizontal)
Nesse caso, deverão ser cotados o ângulo acompanhado da letra H e um dos catetos. Tanto o
ângulo como o cateto podem ser cotados em qualquer lado.
Observe este exemplo que ilustra tubos com mudança de direção 45° na horizontal.
Fig. 15
Fig. 16
Tubulações Industriais – Desenho Isométrico de Tubulações
SENAI/RJ - 93
• Trecho inclinado de 45° no mesmo plano vertical
Quando o trecho está no plano vertical deverão ser cotados o ângulo acompanhado da letra V e um
dos catetos.
Na figura temos um exemplo desse caso.
• Trecho inclinado de ângulos diferentes de 45°
Se o trecho estiver no plano horizontal ou vertical, então é preciso cotar os dois catetos e o ângulo
de 60º, seguido das letras H ou V, de acordo com o caso.
Veja o exemplo da figura que mostra tubos com mudança de direção de 60º, horizontal e vertical.
Fig. 17
Fig. 18
Tubulações Industriais – Desenho Isométrico de Tubulações
94 - SENAI/RJ
• Trecho inclinado com mudança de direção e de plano
Nesse outro caso devem ser indicados os ângulos α e β, além das dimensões A, B e C, como
vemos nessa figura, em que o tubo está inclinado.
Representação de curvas e joelhos em isométricos
Tubos curvados, curvas ou joelhos são representados em desenhos isométricos por curvas em
perspectivas, como você pode ver neste exemplo.
Essas curvas, quando os desenhos isométricos são pequenos, são feitas à mão livre ou, então, com
gabaritos.
Vale lembrar que os tubos curvados, curvas ou joelhos também podem ser representados por
ângulos retos. Observe.
Fig. 19
Fig. 20
Tubulações Industriais – Desenho Isométrico de Tubulações
SENAI/RJ - 95
Nos isométricos, assim como nas plantas de tubulações, as conexões são representadas pela mesma
simbologia. Analise esses exemplos de simbologia para conexões soldadas, rosqueados e flangeadas.
Representação de acessórios em isométricos
Vamos analisar, agora, a representação de alguns tipos de acessórios de tubulações em desenhos
isométricos, tais como flanges, reduções, uniões e luvas, etc.
Reduções
Observe as duas figuras que mostram a representação de reduções em desenhos isométricos.
Fig. 21
Fig. 22
Fig. 23
solda de topo rosqueado ou
solda de encaixe
flangeada
redução excêntrica redução concêntrica
Tubulações Industriais – Desenho Isométrico de Tubulações
96 - SENAI/RJ
Flanges
Agora vejamos como diferentes tipos de flange são representados em desenhos isométricos.
Outros acessórios
Vários outros acessórios também são representados de modo especial em desenhos isométricos,
como mostramos a seguir. Observe cada um com atenção.
Fig. 24
flange de pescoço flange cego flange de orifício bocal de vaso ou
equipamento
Fig. 25
bolsa de drenagem dreno respiro ejetor purgador de
vapor
filtro Y
união luva bujão
tê soldado
de topo
boca de lobo
com reforço
boca de lobo
com sela
colar
soldado
tê 45o
boca de lobo
tê rosqueado curva a 45o
curva a 90o luva
Tubulações Industriais – Desenho Isométrico de Tubulações
SENAI/RJ - 97
Representação das válvulas em isométricos
Veja agora como é feita a representação de diferentes tipos de válvulas em desenhos isométricos.
Posição das hastes das válvulas
Em relação à posição das hastes das válvulas, vamos destacar aqui algumas situações e a respectiva
representação em desenhos isométricos. Observe as figuras em cada caso.
• Tubos horizontais com as hastes na vertical
Fig. 26
Fig. 27
válvula de
gaveta
válvula
globo
válvula
macho
válvula de
esfera
válvula de
retenção
válvula de
controle
válvula de
segurança ou
de alívio
válvula
motorizada
válvula com
volante para
corrente
válvula de
borboleta
flange de
pescoço
flange
sobreposto
filtro “Y” purgador
de vapor
ejetor bocal de vaso ou
equipamento
haste
vertical
tubo
horizontal
sentido
do
fluxo
Tubulações Industriais – Desenho Isométrico de Tubulações
98 - SENAI/RJ
• Tubos horizontais com as hastes na horizontal
• Tubos verticais com as hastes horizontais e inclinadas
Ainda em relação às hastes das válvulas, vale observar que, quando elas são pequenas, como as
válvulas de drenos ou ventes, por exemplo, as hastes não devem ser desenhadas, como mostram esses
dois exemplos.
Fig. 28
Fig. 29
Fig. 30
tubo horizontal
haste
horizontal
tubo vertical
tubo vertical
haste inclinada
hastes
horizontais
Tubulações Industriais – Desenho Isométrico de Tubulações
SENAI/RJ - 99
Nos desenhos isométricos também devem aparecer todas as válvulas e todos os acessórios de
tubulação, tais como flanges, reduções etc., bem como a localização de todas as emendas soldadas,
rosqueadas ou flangeadas.
Veja isso no exemplo ilustrado a seguir, que mostra, primeiramente, um isométrico de uma linha
com válvulas em diversas posições. E depois uma planta correspondente a esse isométrico.
Fig. 31 – Isométrico
Fig. 32 – Planta
Tubulações Industriais – Desenho Isométrico de Tubulações
100 - SENAI/RJ
Indicação de fluxo em isométricos
Em todas as linhas de um desenho isométrico devem aparecer as setas indicativas de sentido do
fluxo. Essas setas, de preferência, devem ser colocadas antes de toda mudança de direção, tomando
o cuidado para não colocá-las sobre uma conexão.
Observe este exemplo.
Fig. 33
planta
sentido do fluxo
isométrico
Tubulações Industriais – Desenho Isométrico de Tubulações
SENAI/RJ - 101
Exemplos de desenhos isométricos
Agora que já analisamos a representação de diferentes componentes de tubulações em isométricos,
vamos ver alguns exemplos gerais de aplicação dessa representação.
• Exemplo de isométrico cotado e respectiva planta baixa
Fig. 34 –
Tubulações Industriais – Desenho Isométrico de Tubulações
102 - SENAI/RJ
• Exemplo de isométrico com nomenclatura dos componentes
• Exemplo de isométrico com observações para desenho
Fig. 35
Fig. 36
Tubulações Industriais – Desenho Isométrico de Tubulações
SENAI/RJ - 103
Identificação dos elementos da
tubulação em desenhos isométricos
Os tubos, vasos, bombas, compressores e demais equipamentos aparecem indicados nos isométricos
apenas pela sua identificação, posição de linha de centro e pelos bocais de ligação com as tubulações.
As válvulas são usualmente designadas por siglas convencionais, como, por exemplo, 2" VGA 4"
VGA. Essa identificação é a mesma empregada em plantas de tubulação.
Nos isométricos devem figurar, detalhadamente, inclusive os acessórios pequenos e secundários
que existam nas tubulações, tais como: válvulas de dreno e de respiro, bocais para retirada de amostras
etc. Os conjuntos formados pelas válvulas de controle e respectivas tubulações de contornos e válvulas
de bloqueio e regulagem são mostrados peça por peça.
Nos desenhos que aparecem a seguir podemos identificar algumas dessas informações. Observe.
• Exemplo 1
Fig. 37
Tubulações Industriais – Desenho Isométrico de Tubulações
104 - SENAI/RJ
• Exemplo 2
Fig. 38
Tubulações Industriais – Desenho Isométrico de Tubulações
SENAI/RJ - 105
Praticando
1. Desenhe o isométrico correspondente às plantas apresentadas em cada caso a seguir. Represente
as conexões conforme as indicações.
• Caso 1
• Caso 2
Fig. 39
Fig. 40
planta
(solda de encaixe)
N
N
planta
(rosqueada)
Tubulações Industriais – Desenho Isométrico de Tubulações
106 - SENAI/RJ
• Caso 3
2. Observe o desenho e depois escreva as denominações e o tipo de ligação dos acessórios nele
indicados.
Fig. 41
Fig. 42
planta
N
1. _______________________
2. _______________________
3. _______________________
4. _______________________
5. _______________________
6. _______________________
7. _______________________
8. _______________________
9. _______________________
10. ______________________
11. ______________________
12. ______________________
Tubulações Industriais – Desenho Isométrico de Tubulações
SENAI/RJ - 107
Fig. 43
Fig. 44
3. Desenhe os isométricos correspondentes às plantas básicas a seguir, e cote.
• Planta 1
• Planta 2
NP
Tubulações Industriais – Desenho Isométrico de Tubulações
108 - SENAI/RJ
• Planta 3
4. Represente em planta, num só desenho, o isométrico apresentado para as tubulações doVASO 310.
Fig. 45
Fig. 46
Tubulações Industriais – Desenho Isométrico de Tubulações
SENAI/RJ - 109
5. Execute as plantas das linhas 3" 0 306 B e 3" 0334-B do isométrico apresentado.
6. Desenhe o isométrico correspondente às linhas G3" 1003Ca e G3 1004Ca da planta e da elevação
apresentadas a seguir.
Fig. 47
Fig. 48
Tubulações Industriais – Desenho Isométrico de Tubulações
110 - SENAI/RJ
7. Assinale com um X a representação gráfica que julgar correta.
Tubulações Industriais – Desenho Isométrico de Tubulações
SENAI/RJ - 111
Assinale com um X a representação gráfica que julgar correta.
Tubulações Industriais – Desenho Isométrico de Tubulações
112 - SENAI/RJ
Fig. 50
Anexos
3
Tubulações Industriais – Anexos
SENAI/RJ - 115
Toda folha de isométrico tem uma numeração que deve ser combinada com a numeração das
plantas, de maneira que seja fácil identificar em qual planta está representada uma linha que
aparece em determinado isométrico e vice-versa. Por exemplo, a planta n°42 corresponde à
série de isométricos começada pelo n° 4.202. Já a planta n°52 corresponde à série começada
pelo n° 5.201, e assim por diante.
Fig. 50
Tubulações Industriais – Anexos
116 - SENAI/RJ
Tubulações Industriais – Anexos
SENAI/RJ - 117
Tubulações Industriais – Anexos
118 - SENAI/RJ
Emprego das convenções de plantas
Tubulações Industriais – Anexos
SENAI/RJ - 119
Corte transversal em uma unidade de processo
Tubulações Industriais – Anexos
120 - SENAI/RJ
Unidade 3 – Planta das tubulações – Área 32
Tubulações Industriais – Anexos
SENAI/RJ - 121
Unidade 3 – Elevação olhando para o norte
Tubulações Industriais – Anexos
122 - SENAI/RJ
Unidade 3 – Elevação olhando para Leste
Tubulações Industriais – Anexos
SENAI/RJ - 123
Unidade 3 – Planta das tubulações – Área 33
Tubulações Industriais – Anexos
124 - SENAI/RJ
Unidade 3 – Planta das tubulações – Área 34
Tubulações Industriais – Anexos
SENAI/RJ - 125
Tubulações Industriais – Anexos
126 - SENAI/RJ
Convenções para fluxograma
Tubulações Industriais – Anexos
SENAI/RJ - 127
Convenções para plantas
Tubulações Industriais – Anexos
SENAI/RJ - 129
Referências bibliográficas
•ABNT. Norma NBR11185 - NB126 12: Projeto de tubulações de ferro fundido dúctil centrifugado,
para condução de água sob pressão. Rio de Janeiro: ABNT, 1994.
• ABNT. Norma NBR8190 - SB124 10: Simbologia de instrumentação. Rio de Janeiro: ABNT,
1983.
•ABNT. Norma NBR9964 - SB88 08: Linhas e símbolos em desenhos de estruturas navais. Rio de
Janeiro: ABNT, 1987.
• ABNT. Norma NBR14611 - 10: Desenho técnico - representação simplificada em estruturas
metálicas. Rio de Janeiro: ABNT, 2000.
• PETROBRAS. Norma N-0058: Subsídios gráficos para fluxogramas de processo e de engenharia.
Rio de Janeiro: Petrobras, 1999.
• _____________. Norma N-0381: Execução de desenhos e outros documentos técnicos em
geral. Rio de Janeiro: Petrobras, 1997.
• _____________. Norma N-1521: Identificação de equipamentos industriais. Rio de Janeiro:
Petrobras, 1998.
• _____________. Norma N-1522: Identificação de tubulações industriais. Rio de Janeiro:
Petrobras, 1998.
• _____________. Norma N-1745: Folha para isométrico de tubulação. Rio de Janeiro: Petrobras,
1999.
• SENAI/Departamento Nacional. Módulos industriais - Desenho de tubulações industriais. Rio de
Janeiro: SENAI/DN, 1980.
• TELES, Pedro C. Silva. Tubulações industriais. Rio de Janeiro: Ao Livro Técnico, 1970.
SENAI
Serviço Nacional
de Aprendizagem
Industrial do
Rio de Janeiro
FIRJAN
CIRJ
SESI
SENAI
IEL
FIRJAN
Federação
das Indústrias
do Estado do
Rio de Janeiro
Av. Graça Aranha, 1
Centro – CEP 20030-002
Rio de Janeiro – RJ
Tel.: (21) 2563-4526
Central de Atendimento:
0800-231231

tubulacao

  • 1.
    FIRJAN CIRJ SESI SENAI IEL TUBULAÇÕES INDUSTRIAIS SENAI-RJ • Metrologia CONTROLEDIMENSIONAL Caldeiraria e tubulação versão preliminar
  • 2.
    TUBULAÇÕES INDUSTRIAIS CONTROLE DIMENSIONAL Caldeiraria etubulação Referente à norma PETROBRAS N-2109, set./98
  • 3.
    FIRJAN−Federação das Indústriasdo Estado do Rio de Janeiro Eduardo Eugenio Gouvêa Vieira Presidente Diretoria Operacional Corporativa Augusto Cesar Franco de Alencar Diretor Diretoria Regional do SENAI-RJ Fernando Sampaio Alves Guimarães Diretor Diretoria de Educação Andréa Marinho de Souza Franco Diretora
  • 4.
  • 5.
    Ficha Técnica Tubulações Industriais 2004 SENAI– Rio de Janeiro Diretoria de Educação Gerência de Educação Luís RobertoArruda Gerência de Produto Newton Martins Produção editorial Vera Regina CostaAbreu Pesquisa de Conteúdo e Redação Nilo de Souza e Silva Revisão Pedagógica Maria Leonor de Macedo Soares Leal Revisão Gramatical Alexandre Rodrigues Alves Revisão Editorial MariaAngela Calvão da Silva Colaboração Marcelo Oliveira Gaspar de Carvalho Projeto Gráfico Artae Design & Criação Edição revista do material Desenho para Curso Técnico de Instrumentação, publicado pelo SENAI-DN, 1988. SENAI – Rio de Janeiro GEP – Gerência de Educação Profissional Rua Mariz e Barros, 678 – Tijuca 20270-903 – Rio de Janeiro – RJ Tel.: (21) 2587-1116 Fax: (21) 2254-2884 E-mail: GEP@rj.senai.br http://www.rj.senai.br
  • 6.
    Sumário 11111 22222 APRESENTAÇÃO ............................................................................11 UMA PALAVRAINICIAL ................................................................13 TUBOS, ACESSÓRIOS E VÁLVULAS...........................................17 Tubos............................................................................................................................. 19 Acessórios de tubulações ........................................................................................ 34 Válvula .......................................................................................................................... 66 Praticando .................................................................................................................... 79 DESENHO ISOMÉTRICO DE TUBULAÇÕES ...........................81 Isométricos.................................................................................................................. 83 Simbologia de tubulações para desenhos isométricos ...................................... 88 Exemplos de desenhos isométricos ..................................................................... 101 Identificação dos elementos da tubulação em desenhos isométricos ......... 103 Praticando .................................................................................................................. 105 ANEXOS ........................................................................................ 113 REFERÊNCIAS BIBLIOGRÁFICAS ............................................ 129 33333
  • 7.
    Prezado aluno, Quando vocêresolveu fazer um curso em nossa instituição, talvez não soubesse que, desse momento em diante, estaria fazendo parte do maior sistema de educação profissional do país: o SENAI. Há mais de sessenta anos, estamos construindo uma história de educação voltada para o desenvolvimento tecnológico da indústria brasileira e da formação profissional de jovens e adultos. Devido às mudanças ocorridas no modelo produtivo, o trabalhador não pode continuar com uma visão restrita dos postos de trabalho. Hoje, o mercado exigirá de você, além do domínio do conteúdo técnico de sua profissão, competências que lhe permitam decidir com autonomia, proatividade, capacidade de análise, solução de problemas, avaliação de resultados e propostas de mudanças no processo do trabalho. Você deverá estar preparado para o exercício de papéis flexíveis e polivalentes, assim como para a cooperação e a interação, o trabalho em equipe e o comprometimento com os resultados. Soma-se, ainda, que a produção constante de novos conhecimentos e tecnologias exigirá de você a atualização contínua de seus conhecimentos profissionais, evidenciando a necessidade de uma formação consistente que lhe proporcione maior adaptabilidade e instrumentos essenciais à auto-aprendizagem. Essa nova dinâmica do mercado de trabalho vem requerendo que os sistemas de educação se organizem de forma flexível e ágil, motivos esses que levaram o SENAI a criar uma estrutura educacional, com o propósito de atender às novas necessidades da indústria, estabelecendo uma formação flexível e modularizada. Essa formação flexível tornará possível a você, aluno do sistema, voltar e dar continuidade à sua educação, criando seu próprio percurso. Além de toda a infra-estrutura necessária ao seu desenvolvimento, você poderá contar com o apoio técnico-pedagógico da equipe de educação dessa escola do SENAI para orientá-lo em seu trajeto. Mais do que formar um profissional, estamos buscando formar cidadãos. Seja bem-vindo! Andréa Marinho de Souza Franco Diretora de Educação
  • 8.
    SENAI/RJ - 11 TubulaçõesIndustriais – Apresentação A dinâmica social dos tempos de globalização exige dos profissionais atualização constante. Mesmo as áreas tecnológicas de ponta ficam obsoletas em ciclos cada vez mais curtos, trazendo desafios renovados a cada dia, e tendo como conseqüência para a educação a necessidade de encontrar novas e rápidas respostas. Nesse cenário, impõe-se a educação continuada, exigindo que os profissionais busquem atualização constante durante toda a sua vida - e os docentes e alunos do SENAI/-RJ incluem-se nessas novas demandas sociais. É preciso, pois, promover, tanto para os docentes como para os alunos da educação profissional, as condições que propiciem o desenvolvimento de novas formas de ensinar e aprender, favorecendo o trabalho de equipe, a pesquisa, a iniciativa e a criatividade, entre outros aspectos, ampliando suas possibilidades de atuar com autonomia, de forma competente. A partir dessa perspectiva é que também elaboramos mais este material didático do conjunto especialmente destinado a você, aluno do Curso de Controle Dimensional. Assim como os demais, ele tem o objetivo primordial de apoiar seus estudos e favorecer a sua participação nas aulas. O estudo dos conteúdos tratados no primeiro bloco do material e a realização dos exercícios propostos vão capacitar você para classificar e interpretar corretamente tubos, acessórios e válvulas. E os assuntos abordados no segundo bloco irão prepará-lo para elaborar esboços de planta baixa e fazer desenhos isométricos de tubulações. Esperamos, desse modo, que o material contribua efetivamente para o enriquecimento de sua formação profissional, tornando-o mais capacitado para enfrentar o seu dia-a-dia de trabalho com desembaraço e Apresentação
  • 9.
    Tubulações Industriais –Uma Palavra Inicial SENAI/RJ - 13 Uma palavra inicial competência. Meio ambiente... Saúde e segurança no trabalho... O que é que nós temos a ver com isso? Antes de iniciarmos o estudo deste material, há dois pontos que merecem destaque: a relação entre o processo produtivo e o meio ambiente; e a questão da saúde e segurança no trabalho. As indústrias e os negócios são a base da economia moderna. Produzem os bens e serviços necessários, e dão acesso a emprego e renda; mas, para atender a essas necessidades, precisam usar recursos e matérias-primas. Os impactos no meio ambiente muito freqüentemente decorrem do tipo de indústria existente no local, do que ela produz e, principalmente, de como produz. É preciso entender que todas as atividades humanas transformam o ambiente. Estamos sempre retirando materiais da natureza, transformando-os e depois jogando o que “sobra” de volta ao ambiente natural. Ao retirar do meio ambiente os materiais necessários para produzir bens, altera-se o equilíbrio dos ecossistemas e arrisca-se ao esgotamento de diversos recursos naturais que não são renováveis ou, quando o são, têm sua renovação prejudicada pela velocidade da extração, superior à capacidade da natureza para se recompor. É necessário fazer planos de curto e longo prazo, para diminuir os impactos que o processo produtivo causa na natureza. Além disso, as indústrias precisam se preocupar com a recomposição da paisagem e ter em mente a saúde dos seus trabalhadores e da população que vive ao redor delas. Com o crescimento da industrialização e a sua concentração em determinadas áreas, o problema da poluição aumentou e se intensificou. A questão da poluição do ar e da água é bastante complexa, pois as emissões poluentes se espalham de um ponto fixo para uma grande região, dependendo dos ventos, do curso da água e das demais condições ambientais, tornando difícil localizar, com precisão, a origem do problema. No entanto, é importante repetir que, quando as indústrias depositam no solo os resíduos, quando lançam efluentes sem tratamento em rios, lagoas e demais corpos hídricos, causam danos ao meio ambiente. O uso indiscriminado dos recursos naturais e a contínua acumulação de lixo mostram a falha básica
  • 10.
    Tubulações Industriais –Uma Palavra Inicial 14 - SENAI/RJ de nosso sistema produtivo: ele opera em linha reta. Extraem-se as matérias-primas através de processos de produção desperdiçadores e que produzem subprodutos tóxicos. Fabricam-se produtos de utilidade limitada que, finalmente, viram lixo, o qual se acumula nos aterros. Produzir, consumir e dispensar bens dessa forma, obviamente, não é sustentável. Enquanto os resíduos naturais (que não podem, propriamente, ser chamados de “lixo”) são absorvidos e reaproveitados pela natureza, a maioria dos resíduos deixados pelas indústrias não tem aproveitamento para qualquer espécie de organismo vivo e, para alguns, pode até ser fatal. O meio ambiente pode absorver resíduos, redistribuí-los e transformá-los. Mas, da mesma forma que a Terra possui uma capacidade limitada de produzir recursos renováveis, sua capacidade de receber resíduos também é restrita, e a de receber resíduos tóxicos praticamente não existe. Ganha força, atualmente, a idéia de que as empresas devem ter procedimentos éticos que considerem a preservação do ambiente como uma parte de sua missão. Isso quer dizer que se devem adotar práticas que incluam tal preocupação, introduzindo processos que reduzam o uso de matérias-primas e energia, diminuam os resíduos e impeçam a poluição. Cada indústria tem suas próprias características. Mas já sabemos que a conservação de recursos é importante. Deve haver crescente preocupação com a qualidade, durabilidade, possibilidade de conserto e vida útil dos produtos. As empresas precisam não só continuar reduzindo a poluição, como também buscar novas formas de economizar energia, melhorar os efluentes, reduzir a poluição, o lixo, o uso de matérias-primas. Reciclar e conservar energia são atitudes essenciais no mundo contemporâneo. É difícil ter uma visão única que seja útil para todas as empresas. Cada uma enfrenta desafios diferentes e pode se beneficiar de sua própria visão de futuro. Ao olhar para o futuro, nós (o público, as empresas, as cidades e as nações) podemos decidir quais alternativas são mais desejáveis e trabalhar com elas. Infelizmente, tanto os indivíduos quanto as instituições só mudarão as suas práticas quando acreditarem que seu novo comportamento lhes trará benefícios - sejam estes financeiros, para sua reputação ou para sua segurança. A mudança nos hábitos não é uma coisa que possa ser imposta. Deve ser uma escolha de pessoas bem-informadas a favor de bens e serviços sustentáveis. A tarefa é criar condições que melhorem a capacidade de as pessoas escolherem, usarem e disporem de bens e serviços de forma sustentável. Além dos impactos causados na natureza, diversos são os malefícios à saúde humana provocados pela poluição do ar, dos rios e mares, assim como são inerentes aos processos produtivos alguns riscos à saúde e segurança do trabalhador. Atualmente, acidente do trabalho é uma questão que preocupa os empregadores, empregados e governantes, e as conseqüências acabam afetando a todos. De um lado, é necessário que os trabalhadores adotem um comportamento seguro no trabalho, usando os equipamentos de proteção individual e coletiva; de outro, cabe aos empregadores prover a empresa com esses equipamentos, orientar quanto ao seu uso, fiscalizar as condições da cadeia produtiva e a adequação dos equipamentos de proteção. Aredução do número de acidentes só será possível à medida que cada um - trabalhador, patrão e governo
  • 11.
    Tubulações Industriais –Uma Palavra Inicial SENAI/RJ - 15 - assuma, em todas as situações, atitudes preventivas, capazes de resguardar a segurança de todos. Deve-se considerar, também, que cada indústria possui um sistema produtivo próprio, e, portanto, é necessário analisá-lo em sua especificidade, para determinar seu impacto sobre o meio ambiente, sobre a saúde e os riscos que o sistema oferece à segurança dos trabalhadores, propondo alternativas que possam levar à melhoria de condições de vida para todos. Da conscientização, partimos para a ação: cresce, cada vez mais, o número de países, empresas e indivíduos que, já estando conscientizados acerca dessas questões, vêm desenvolvendo ações que contribuem para proteger o meio ambiente e cuidar da nossa saúde. Mas isso ainda não é suficiente... faz-se preciso ampliar tais ações, e a educação é um valioso recurso que pode e deve ser usado em tal direção. Assim, iniciamos este material conversando com você sobre meio ambiente, saúde e segurança no trabalho, lembrando que, no seu exercício profissional diário, você deve agir de forma harmoniosa com o ambiente, zelando também pela segurança e saúde de todos no trabalho. Tente responder à pergunta que inicia este texto: meio ambiente, saúde e segurança no trabalho - o que é que eu tenho a ver com isso? Depois, é partir para a ação. Cada um de nós é responsável. Vamos fazer a nossa parte?
  • 12.
    Tubos, acessórios e válvulas 1 NestaSeção... Tubos Acessórios de tubulações Válvula Praticando
  • 13.
    Tubulações Industriais –Tubos, Acessórios e Válvulas SENAI/RJ - 19 Tubulação É o nome dado ao conjunto de tubos, acessórios, válvulas e dispositivos que participam de um processo em uma área ou unidade, constituindo uma de suas partes mais importantes. Eles compõem, juntamente com os equipamentos como torres, permutadores, tanques e bombas, um complexo necessário ao funcionamento de uma unidade de processo. Este é, pois, o assunto de que trataremos neste primeiro bloco de estudos. Lembramos que, devido à grande variedade dos acessórios, aqui apresentaremos apenas aqueles necessários para você ter uma visão geral desses elementos, tanto de modo isolado como em conjunto com o restante dos equipamentos. Tubos Os tubos são elementos vazados, normalmente de forma cilíndrica e seção constante, utilizados no transporte de fluidos, os quais podem ser líquidos, gasosos ou mistos. Observe. Fig. 1
  • 14.
    Tubulações Industriais –Tubos, Acessórios e Válvulas 20 - SENAI/RJ Para auxiliar o deslocamento dos fluidos entre os equipamentos (vasos, torres, permutadores etc.) e para os tanques de armazenamento, ao final do processo, são utilizadas máquinas como bombas e compressores. Entidades normalizadoras Os métodos e o processo de fabricação de tubos, assim como os materiais empregados, as dimensões a serem observadas e as possíveis aplicações estão normalizados por entidades como as seguintes: ASA - American Standard Association ANSI - American National Steel Institute MSS - Manufacture Standartization Society ASME - American Society Mechanical of Engenier DIN - Dentsh Industrie Normen ASTM - American Society for Testing Material ABNT - Associação Brasileira de Normas Técnicas API - American Petroleum Institute ISA - Instrumentation Standard of American Os principais objetivos das normas elaboradas por essas entidades são: - orientar os executores dos projetos mediante a criação de especificação e serviços adequados; - trabalhar pela criação de métodos e padrões de fabricação; - delimitar as responsabilidades e fixar tolerâncias de fabricação; - estabelecer materiais e especificações de aplicações de determinadas matérias na fabricação de tubos e seus acessórios. Tipos de materiais dos tubos Embora a fabricação de tubos empregue mais de 200 tipos de materiais, somente uns 40 tipos são utilizados na produção comercial. Os tubos mais usados são os de materiais ferrosos como o aço-carbono, o aço-liga e o aço inoxidável. Os tubos de ferro fundido são restritos às instalações de utilidade como de água, de esgoto etc.
  • 15.
    Tubulações Industriais –Tubos, Acessórios e Válvulas SENAI/RJ - 21 O aço-carbono é uma liga de ferro de carbono. A percentagem de carbono, que pode variar de 0,15 a 0,5%, determina o grau de dureza do aço. Quanto maior a percentagem de carbono na liga, maior será a dureza e também maior a dificuldade de soldagem do aço. E a soldagem é um dos processos de maior utilização na união de tubos a acessórios. Nas indústrias de processamento, principalmente nas petroquímicas e petrolíferas, os tubos de aço- carbono são os mais utilizados, devido às suas excelentes qualidades mecânicas, à boa soldabilidade e ao baixo custo. Além disso, eles podem trabalhar com água, vapor condensado, gás e óleo a pressões e temperaturas elevadas. Mas o aço-carbono também apresenta algumas restrições. Em temperaturas abaixo de -30°C, ele se torna quebradiço. E, acima de 500°C, está sujeito a deformações lentas. Outras desvantagens são a baixa resistência a fluidos e à corrosão, quando exposto a ambiente úmido. Quando é necessária a utilização de tubulações nessas situações, o projeto estabelece a utilização de aços-ligas ou inoxidáveis. Os aços-ligas e os inoxidáveis podem conter cromo, níquel, molibdênio ou titânio, dificultando a ação dos agentes que atacam o aço. Outra modalidade de defesa contra esses agentes é a utilização de tubos galvanizados, desde que os projetistas assim o determinem. Outros materiais empregados na fabricação dos tubos são, por exemplo: - cobre e suas ligas; - alumínio; - chumbo; - materiais plásticos (PVC, Teflon, polietileno, epoxi, etc.); - vidros, cerâmicas, barro, concreto; - borracha. O cobre e suas ligas trabalham numa faixa de temperatura de 180°C até 200°C, sendo materiais de ótima resistência à oxidação e a inúmeros fluidos corrosivos. Os tubos fabricados com esses materiais são empregados na indústria em feixes tubulares, serpentinas para refrigeração e serpentinas para aquecimento a vapor de baixa pressão. Já na instrumentação, os tubos de cobre ou de ligas de cobre são aplicados em ar comprimido e para sinais de instrumentos.
  • 16.
    Tubulações Industriais –Tubos, Acessórios e Válvulas 22 - SENAI/RJ A figura 2 mostra a aplicação de tubos de cobre em instrumentos. No caso do alumínio, os tubos produzidos com esse material são empregados para troca de calor e os tubos de chumbo são utilizados em tubulações de esgoto sem pressão. Já os tubos de plástico têm utilização em casos de baixa temperatura e pressão, uma vez que apresentam a vantagem de serem de baixo peso, baixo custo e de grande resistência a muitos produtos corrosivos, quando comparados a materiais metálicos. Dizemos que, em geral, os plásticos substituem os metais onde eles são fortemente atacados. Os ácidos diluídos, por exemplo, não atacam os plásticos, mas afetam fortemente os metais. Já os álcalis concentrados, no entanto, atacam os plásticos mas não afetam muitos os metais. No caso dos componentes de produtos do petróleo, por exemplo, eles podem ser conduzidos por tubos metálicos, mas nem todos por tubos plásticos. A escolha do material empregado nos tubos está diretamente relacionada ao projeto e às características das variáveis do processo como: pressão, temperatura, vazão, viscosidade e outros. Os fatores que também influenciam na escolha dos materiais dos tubos são a segurança, as cargas mecânicas, a corrosão e os custos, entre outros. Fig. 2 instrumento tubulação para instrumentação tubulação de processo
  • 17.
    Tubulações Industriais –Tubos, Acessórios e Válvulas SENAI/RJ - 23 Métodos de fabricação de tubos Há duas grandes classes de fabricação de tubos: a sem costura e a com costura. Vejamos, então, o que caracteriza cada um desses métodos. Fabricação de tubos sem costura Diz-se que um tubo é sem costura quando ele é fabricado sem emendas longitudinais ou transversais. Os processos industriais de fabricação dos tubos sem costura são em número de quatro: fundição, forjamento, extrusão e laminação, que descreveremos a seguir. Por meio desses processos, os tubos tomam-se de qualidade superior e próprios para juntarem pressões elevadas. • Fundição O tubo é fabricado em um molde no qual o material é despejado em estado líquido.Ao se solidificar, o tubo estará com sua forma definida. Por esse processo são fabricados tubos de ferro fundido, de barro, borrachas, concretos etc. • Forjamento É um processo de pouca aplicação, em que um lingote de aço aquecido ao rubro é martelado contra um mandril central, até que a forma e a espessura desejada sejam obtidas. Durante a martelagem, o lingote vai aumentando o comprimento. • Extrusão O material em estado pastoso é pressionado por êmbolo através de um furo de uma matriz e por fora do mandril. Ao sair, ele já tem a forma de tubo. Após essa operação o tubo, ainda curto, passa por laminadores que vão dando as formas e dimensões definitivas. Por extrusão fabricam-se tubos de pequenos diâmetros, como os de alumínio, cobre, chumbo e plástico. • Laminação É o processo de fabricação mais importante dos tubos sem costura, que consiste em passar um lingote de aço aquecido a 1200°C num laminador. O lingote, ao passar entre os rolos do laminador, é prensado fortemente, ao mesmo tempo que um mandril abre um furo, transformando-o em tubo. Fabricação de tubos com costura Os tubos com costura são fabricados pelos processos de soldagem, a partir de chapas enroladas. Esses tipos de tubos, apesar de possuírem menor resistência que os sem costura, são de uso mais freqüente, pelo fato de terem um custo mais baixo, devido à facilidade do processo de soldagem. Por meio da soldagem os tubos podem ser fabricados de dois modos distintos:
  • 18.
    Tubulações Industriais –Tubos, Acessórios e Válvulas 24 - SENAI/RJ - enrolando uma chapa em espiral e soldando a emenda (em espiral); - enrolando (por calandragem) a chapa no sentido longitudinal e soldando a emenda (longitudinal). Dentre os processos de fabricação dos tubos soldados, a soldagem a arco elétrico é a mais utilizada. Por esse processo, o calor para produzir a fusão do metal de base (tubo) é gerado por arco elétrico produzido entre dois eletrodos, ou entre um eletrodo e a peça que está sendo soldada. A soldagem é utilizada na fabricação dos tubos e também na montagem das tubulações. Os processos de soldagem industrial são automatizados ou semi-automatizados, sendo a solda manual raramente utilizada. Dentre esses processos, os mais importantes são: - soldagem com eletrodo revestido; - soldagem com arco submerso; - soldagem com gás inerte e eletrodo de tungstênio - TIG e MIG/MAG. Significado das normas ASTM para identificação do material As normas ASTM são as mais utilizadas em relação aos materiais empregados na fabricação de tubos, embora as normas DIN e as normas ABNT também apresentem especificações a esse respeito. Vamos entender o que significa cada elemento que aparece na especificação de uma norma, analisando esses dois exemplos: ASTM A-161 gr. A ASTM B-247 Os elementos que aparecem nessas duas especificações e seus respectivos significados são os seguintes: • ASTM Indica as iniciais da entidade normalizadora: American Society Testing of Material.
  • 19.
    Tubulações Industriais –Tubos, Acessórios e Válvulas SENAI/RJ - 25 • A ou B Essas são as letras que aparecem nos exemplos, logo depois das iniciais da entidade, e que indicam o tipo de material. São quatro letras possíveis, sendo cada uma para um material diferente, como especificado a seguir: A → indica material aço (aço-carbono baixo ou alto, aço-liga, aço forjado, inox ou outros); B → indica genericamente o material cobre, ligas, latão, alumínio, níquel e outros; C → indica genericamente o material cerâmica ou fibrocimento; D → indica genericamente o material plástico (PVC, acetato de celulose e outros). • 161 ou 247 Esses são os números que, nos exemplos dados, vêm logo depois da letra que indica o tipo de material. Os números sinalizam as características de construção (por exemplo: se é com costura ou sem costura), as faixas de temperaturas de trabalho e ainda, em alguns casos, a indicação específica para determinada espécie de trabalho (por exemplo: para caldeiras, para produtos petrolíferos etc.). Nos exemplos dados, os números significam o seguinte: 161 → significa tubos de aço-carbono e molibdênio sem costura para emprego em refinarias, nas instalações do cracking; 247 → significa tubo de alumínio forjado em matriz. • gr. A ou gr. B Essa anotação que aparece em seguida ao número caracteriza pequenas variações nas aplicações para um mesmo material. Dimensões de tubos De acordo com a Normas ANSI B.36.10, todo tubo de aço, qualquer que seja seu processo de fabricação, é designado por um número denominado diâmetro nominal. Esse diâmetro nominal não tem dimensões físicas assinaladas no tubo, sendo usado somente como indicação.
  • 20.
    Tubulações Industriais –Tubos, Acessórios e Válvulas 26 - SENAI/RJ Veja, nessa figura, as dimensões de um tubo. onde: di → diâmetro interno de → diâmetro externo e → espessura da parede Na especificação dos tubos, é muito importante que a sua espessura seja indicada porque essa indicação, aliada ao tipo de material empregado na fabricação, permite que o profissional calcule a dimensão adequada para resistir às cargas mecânicas previstas em projeto. A espessura dos tubos, segundo a Norma ANSI B.36.10, é estabelecida em séries denominadas schedule, que é abreviado por SCH. A série de schedules é apresentada pelos seguintes números: SCH - 5, 10, 20, 30, 40, 60, 80, 100, 120, 140 e 160. Para um mesmo diâmetro nominal existem várias schedules diferentes. No exemplo ilustrado nessa figura, em que o diâmetro (Ø) nominal é de 10" (dez polegadas), observamos que quanto maior o número do SCH, maior é a espessura do tubo. Conheça agora a tabela de dimensões de tubos de aço-laminado ou soldados, segundo a Norma ANSI B.36.10 Fig. 3 e di de Fig. 4 e=18,2 e=12,7 e=7,7 de=273 sch:100 sch:60 sch:30
  • 21.
    Tubulações Industriais –Tubos, Acessórios e Válvulas SENAI/RJ - 27 Tabela de tubos de aço e carbono, segundo a norma ANSI B.36.10 T = Espessura das partes dos tubos Extremidades dos tubos Numa unidade de processo, em decorrência do posicionamento dos equipamentos, os tubos necessitam se interligar, mudar de direção e de nível ou, ainda, se conectar à válvula e aos próprios equipamentos. Prevendo essa necessidade, os fabricantes fornecem tubos com 4 tipos de extremidades. Vejamos quais são eles. • Extremidade lisa Ou simplesmente esquadrejada, permite uniões com bolsa, flanges sobrepostos ou de encaixe e de bolsa. Tabela 1 Fig. 5
  • 22.
    Tubulações Industriais –Tubos, Acessórios e Válvulas 28 - SENAI/RJ • Extremidade biselada É freqüentemente usada em uniões com solda de topo. • Extremidade rosqueada É muito usada em tubos galvanizados de ferro forjado e de aço. É limitada até o diâmetro nominal de 4", nos schedules 80 a 160. As roscas utilizadas são normalmente cônicas NPT (National Pipe Thead) ou roscas de gás BS (Whitworh). Esses tipos de extremidades não são recomendadas para temperaturas elevadas. • Extremidade com bolsas É restrita a condutos de água, esgoto e alguns produtos corrosivos, sendo raramente utilizada em processo. A escolha de uma dessas extremidades é feita de acordo com o tipo de ligação estabelecida no projeto e é determinada em função das dimensões dos tubos, da pressão de trabalho, da temperatura etc. Maiores detalhes sobre os tipos de uniões citados aqui você encontrará no item relativo aos acessórios. Fig. 7 Fig. 8 Fig. 6
  • 23.
    Tubulações Industriais –Tubos, Acessórios e Válvulas SENAI/RJ - 29 Identificação das tubulações no projeto Todos os projetos industriais adotam um sistema de identificação para todas as tubulações, vasos, tanques, máquinas e instrumentos. No caso das tubulações, elas são identificadas por siglas que englobam: - o diâmetro nominal da linha, que geralmente é fornecido em polegadas; - a abreviatura do tipo de fluido que circula na linha (água, vapor, gás etc.); - o número da unidade de processo; - o número da linha; - a especificação da linha quanto aos materiais de sua composição (característica da firma); - o tipo de isolamento, se houver. Veja este exemplo. Vamos agora comentar sobre cada um desses elementos que compõem a identificação da tubulação no projeto. • Diâmetro nominal É geralmente fornecido em polegadas. No exemplo apresentado ele é de 6". • Tipo de fluido A letra indicativa dos fluidos é estabelecida pela empresa executora dos projetos. Essa letra pode vir sozinha ou acompanhada de outra, para melhor definição do tipo de fluido. diam. nominal da linha tipo de fluido número da linha e da área especificação do material 6” – A . 320 – B
  • 24.
    Tubulações Industriais –Tubos, Acessórios e Válvulas 30 - SENAI/RJ Dentre as várias letras utilizadas e os fluidos que elas indicam, destacamos alguns exemplos: C - combustível G - gases V - vapor O - óleo SW - água salgada H - ácido N - cáustico W - água Ai - ar de instrumentos HW - água quente • Número da linha Nesse número, o primeiro ou os primeiros algarismos indicam a área em que a tubulação se encontra. E os últimos indicam o número de ordem da linha. Por exemplo: o número 243 indica área 2 e tubulações no 043. • Especificação do material Essa especificação é feita de acordo com as normas, sendo apresentada no projeto executado exclusivamente para cada classe de serviço e para cada projeto ou instalação. A letra especifica o material, como vimos no exemplo anterior. Finalmente vale lembrar que, assim como ocorre com as tubulações, os equipamentos também são indicados por siglas, como podemos ver nesses exemplos: B – 304 T – 401 P - 405 V - 302 ↓ ↓ Bomba Torre VasoPermutador ↓↓
  • 25.
    Tubulações Industriais –Tubos, Acessórios e Válvulas SENAI/RJ - 31 Representação gráfica dos tubos nos desenhos de tubulações Nos desenhos de tubulações, os tubos devem ser representados de modo específico, como determinam suas respectivas normas. Essa representação pode ser relativa a tubos de processo ou a tubos para instrumentação. Vejamos cada caso. Representação dos tubos de processo A norma NB-59 rev.C - set.99 da Petrobras estabelece duas formas de representação dos tubos de processo, que variam em função do diâmetro desses tubos. • Para tubos de φφφφφ a ≥≥≥≥≥ 12" Observe, nas figuras que seguem, a vista frontal e a vista de perfil, respectivamente, da representação de um tubo de processo. • Para tubos acima de 12" Nesse caso, a representação é feita com linha dupla, num pequeno trecho somente, como vemos na figura 10. Veja os sinais que aparecem nas extremidades das linhas e que indicam a interrupção no desenho. Fig. 9 Fig. 10 vista frontal vista de topo ou lateral sinal de interrupção vista frontal vista de topo ou lateral
  • 26.
    Tubulações Industriais –Tubos, Acessórios e Válvulas 32 - SENAI/RJ Representação dos tubos para instrumentação A representação dos tubos para instrumentação também é feita de acordo com a simbologia das normas ISA, para instrumentação, como mostrado a seguir. • Ar para instrumentação (geral) • Sinal pneumático • Sinal hidráulico • Linha de vapor É importante lembrar que, no desenho, a espessura das linhas dos tubos para instrumentação deve ser mais fina do que a utilizada para os tubos de processo. Anotação da identificação da tubulação no desenho A indicação que individualiza cada trecho da tubulação é utilizada em plantas de tubulações, isométricos e fluxogramas, sendo anotada na parte superior da linha do tubo. Na parte inferior do tubo é anotada a altura ou elevação (EL.) em que está localizado o tubo em relação ao grade da planta. Essa altura pode ser expressa em unidades do sistema métrico ou do sistema inglês. Afigura 11 mostra as anotações de identificação que são feitas nas linhas do desenho. Observe com atenção.
  • 27.
    Tubulações Industriais –Tubos, Acessórios e Válvulas SENAI/RJ - 33 Agora analise alguns exemplos de anotações que são feitas para identificação da tubulação em planta, isométrico e fluxograma. • Representação em planta • Representação em isométrico Fig. 13 Fig. 11 2” O 415 – A EL 104.000 EL 104.000 EL 10.000 4” O 401 – BV Fig. 12 4” – A – 302 – B EL 102.000 3” – A – 302 – A EL 101.000 B32 4” – A – 302 – B EL 102.000 3” – A – 302 – A EL 101.000 B32
  • 28.
    Tubulações Industriais –Tubos, Acessórios e Válvulas 34 - SENAI/RJ • Representação em fluxograma Acessórios de tubulações Acessórios de tubulações são peças utilizadas nas tubulações de modo a permitir mudanças de direção, de nível, derivações, redução ou ampliação do diâmetro da tubulação. Os materiais das conexões são os mesmos utilizados na fabricação dos tubos. E as normas que regulam a fabricação desses acessórios são as seguintes: - para dimensões e especificação → Norma ANSI 3.31, B 16.9, B 10.11, B 16.5 - para fabricação → Norma ASTM A-232, A105, A.197, A-126 - para especificação de materiais → Norma ASTM P.B 15, PB 15, PB.PB 157 - para símbolos gráficos para desenho de tubulação → Norma N-59 rev.C - set.99 Tipos de conexões As conexões das tubulações são de diferentes tipos, com diferentes finalidades, como podemos ver a seguir. Fig. 14 4” - F301 - A 4”- V301 - BV B - 31 - A B - 31 - B 2”302-B4”O302-B 3”O304-B 4” O 303 - B 3” O 305 - B
  • 29.
    Tubulações Industriais –Tubos, Acessórios e Válvulas SENAI/RJ - 35 • Curvas e joelhos Para mudança de direção. • Tês, cruzetas e Y Para derivações ao mudar de direção da tubulação. • Luvas, niples e uniões Para ligar tubos entre si ou com algum outro acessório. • Tampões, bujões e flanges cegos Para fechamento de extremidades de tubos ou equipamentos. • Reduções Para mudar, seja para maior ou menor, o diâmetro da tubulação. • Flanges Para fazer a ligação entre tubos ou entre tubos e acessórios. • Válvulas Para controlar e interromper o fluxo de uma tubulação. Todos esses acessórios são fabricados de acordo com o tipo de ligação empregada, ou seja, com o procedimento adotado para unir tubos entre si, ou tubos com algum acessório ou algum equipamento. Os procedimentos para ligação podem ser de seis tipos, a saber: - por solda, de topo ou de encaixe; - rosqueada; - flangeada; - ponta e bolsa; - compressão. Vamos analisar, com mais detalhes, cada uma das conexões aqui apresentadas.
  • 30.
    Tubulações Industriais –Tubos, Acessórios e Válvulas 36 - SENAI/RJ Curvas e joelhos As finalidades das conexões do tipo curva e joelho, como já vimos anteriormente, é propiciar mudanças de direção da linha. Esses acessórios podem ser dos seguintes tipos: - joelhos; - curvas de raio curto; - curvas de raio longo; - curva em gomos. As figuras que seguem mostram algumas conexões desse tipo. As ligações dessas conexões com os títulos podem ser: - rosqueadas; - por solda de topo; - por solda de encaixe; - flangeadas. Curvas e joelhos rosqueados As curvas e joelhos rosqueados, que vemos nas figuras a seguir, são utilizados para instalações de água e ar condensado de baixa pressão até 4". Fig. 15 curva de raio longo em gomos (90o )com redução180o 90o 45o 90o curva de raio curto Fig. 16 joelho de 45o tubos rosca joelho de 90o joelho MONTAGEM
  • 31.
    Tubulações Industriais –Tubos, Acessórios e Válvulas SENAI/RJ - 37 Os materiais usados na fabricação de curvas e joelhos rosqueados são os seguintes: - aço maleável, como especificado na Norma ASTM-A197; - ferro fundido, latão ou aço-carbono forjado, como determina a Norma ASTM A.105 a 181, nas classes de pressão de 125, 150, 300, 2000, 3000 e 6000, com variações de diâmetro de 1/4 a 4". As dimensões das roscas das curvas e joelhos são normatizados pela Norma API B.2.1 e Norma API 6A. Nos desenhos de tubulação, a representação gráfica das curvas e joelhos rosqueados é feita de acordo com a simbologia do sistema ASA. Vejamos como é feita essa representação em diferentes vistas e, depois, um exemplo de como ela é aplicada em desenhos de tubulação. • Representação por símbolos gráficos de curvas e joelhos rosqueados ou solda de encaixa para plantas de tubulação • Aplicação dos símbolos de curvas e joelhos rosqueados ou solda de encaixe em plantas de tubulações VISTAS a - vista frontal (elevação) b e c - vistas laterais (perfil) d - vista superior (planta) ab c d Fig. 17 Fig. 18 tubo joelho vista frontal (elevação) vista lateral (perfil) vista superior (planta)
  • 32.
    Tubulações Industriais –Tubos, Acessórios e Válvulas 38 - SENAI/RJ Curvas e joelhos para solda de encaixe Esses acessórios são utilizados para tubulações que variam de 1/8" a 4", nas classes 200, 3000, 4000 e 6000. Observe as duas figuras. Os materiais empregados nos joelhos e curvas para solda de encaixe são normalizados pela Norma ASTM A.105 e A-181 (referente a aços-liga, inox e aço-carbono forjado). A representação gráfica desse tipo de acessório, para emprego em desenhos de tubulações, é a mesma empregada para os joelhos rosqueados. Curvas e joelhos flangeados As curvas e joelhos flangeados são acessórios bem mais raros do que os de outros tipos, sendo fabricados com diâmetro de 1" a 24" em ferro fundido e em aço fundido. As duas figuras exemplificam esse tipo de acessório. Fig. 20 encaixe joelho ou curva solda de encaixe solda de encaixe tubos Fig. 19
  • 33.
    Tubulações Industriais –Tubos, Acessórios e Válvulas SENAI/RJ - 39 furos para colocação dos parafusos ou estojos Fig. 21 flange Fig. 22 tuboestojos ou parafusos com porca tubo As curvas e joelhos flangeados devem obedecer às determinações da Norma ABNT P-PB-15 e da Norma 16.5, que normalizam esses acessórios em dimensões, pressões e temperaturas de trabalho. De acordo com a simbologia da Norma N-59 rev.C - set.99 da Petrobras, a representação gráfica das curvas e joelhos flangeados é feita como ilustramos a seguir. Veja depois um exemplo de desenho de tubulação, em que essa representação é empregada. • Representação gráfica para desenho de tubulações VISTAS a - vista frontal (elevação) b e c - vistas laterais (perfil) d - vista superior (planta) ab c d Fig. 23
  • 34.
    Tubulações Industriais –Tubos, Acessórios e Válvulas 40 - SENAI/RJ • Aplicação dos símbolos gráficos de curvas e joelhos flangeados para desenho de tubulações Curvas e joelhos para solda de topo Esses acessórios são empregados em tubulações acima de 2" e fabricadas em aço-carbono, aço- liga e aço inox forjado, sendo de 30°, 45°, 180°. A Norma ANSI B.16.9 identifica esse tipo de acessório. E os materiais com que eles são fabricados são normalizados pela Norma ASTM. A-234, no caso do aço-carbono. Observe as curvas e joelhos para solda de topo nessas duas figuras. Fig. 24 vista frontal vista lateral Fig. 25 biséis Fig. 26 tubo tubo tubo joelho solda solda
  • 35.
    Tubulações Industriais –Tubos, Acessórios e Válvulas SENAI/RJ - 41 Como você pode ver, as extremidades dessas conexões já são preparadas com um chanfro próprio para solda de topo, como também a extremidade dos tubos. Veja agora a representação gráfica das curvas e joelhos para solda de topo e respectiva aplicação em desenhos de tubulações. • Representação dos símbolos gráficos de curvas e joelhos para solda de topo para desenho de tubulações • Aplicação dos símbolos de curvas e joelhos para solda de topo em desenho de tubulações Tês, cruzetas e Y Observe as figuras que mostram, respectivamente, um tê, uma cruzeta e um Y em 45º, acessórios de tubulações que têm a finalidade de fazer derivações, vínculos e mudar direções. Fig. 27 Fig. 28 VISTAS a - vista frontal (elevação) b e c - vistas laterais (perfil) d - vista superior (planta) (a)(b) (c) (d)
  • 36.
    Tubulações Industriais –Tubos, Acessórios e Válvulas 42 - SENAI/RJ Os tês, cruzetas e Y admitem diferentes tipos de ligações, que podem ser rosqueadas, solda de topo, solda de soquete e flangeada. Veja exemplos desses tipos de ligações nas figuras que seguem. • Tê rosqueado • Cruzeta para solda de encaixe Fig. 29 Fig. 30 Fig. 31 Fig. 32 tubo Fig. 33 tubo tubo solda solda tubo
  • 37.
    Tubulações Industriais –Tubos, Acessórios e Válvulas SENAI/RJ - 43 • Tê ou Y 45º flangeado As normas para cada um desses acessórios e de seus tipos de ligações são as mesmas dos acessórios já trabalhados até aqui. A representação gráfica dos tês, cruzetas e Y, de acordo com a simbologia da norma N-59 rev.C - set.99 da Petrobras, é mostrada nas figuras que seguem. Observe com atenção. • Representação dos símbolos gráficos de tês, cruzetas e Y para desenho de tubulações Fig. 34 tubo tuboflange tês cruzetas “Y” a 45o rosqueadoe soldadeencaixesoldadetopoflangeadas Fig. 35
  • 38.
    Tubulações Industriais –Tubos, Acessórios e Válvulas 44 - SENAI/RJ • Aplicação dos símbolos gráficos de tês, cruzetas e Y para desenhos de tubulações Luvas, niples e uniões As luvas, niples e uniões têm a finalidade de fazer a ligação de tubos entre si ou com algum equipamento. Esses acessórios, quanto ao tipo de ligação, podem ser: rosqueados, solda de encaixe, e solda de topo (só acima de 2"). Veja alguns exemplos nas figuras que seguem. • Luva rosqueada cruzeta com rosca ou solda de encaixe “Y” com solda do topo cruzeta flangeada tê com solda do topo Fig. 37 tubo Fig. 36 luva tubo
  • 39.
    Tubulações Industriais –Tubos, Acessórios e Válvulas SENAI/RJ - 45 • Luva para solda de encaixe • Meia-luva • Niple Fig. 38 tubo tubo luvasolda Fig. 39 Fig. 40 tubo tubo niple
  • 40.
    Tubulações Industriais –Tubos, Acessórios e Válvulas 46 - SENAI/RJ • União montada • União desmontada Agora observe alguns exemplos de montagem de instrumentos com o emprego de luvas, niples e uniões, entre outros acessórios. Fig. 41 união tubo tubo Fig. 43 união tubo tubo Fig. 42 bucha de red. φ 2” x 3/4” material de acordo com especificação da tubulação luva de redução niple φ 2” x 50mm tubo tê φ 2” tubo φ 2” x 100mm
  • 41.
    Tubulações Industriais –Tubos, Acessórios e Válvulas SENAI/RJ - 47 Também no caso das luvas e das uniões, a representação gráfica a ser empregada nos desenhos de tubulações é feita de acordo com a simbologia da norma N-59 rev.C de set.99 da Petrobras. Lembramos que não há uma representação isolada para os niples, mas somente em planta. Então vejamos a representação gráfica das luvas e das uniões e, também, alguns exemplos em que essa representação é aplicada. curva φ 3” Fig. 44 redução concêntrica ou excêntrica conforme conveniência da tubulaçãoluva φ 3/4 x 300 Fig. 45 luva φ 3/4 3000 (pela tubulação) redução concêntrica ou excêntrica conforme conveniência da tubulação tubo φ 4”
  • 42.
    Tubulações Industriais –Tubos, Acessórios e Válvulas 48 - SENAI/RJ • Representação dos símbolos gráficos de luvas e uniões para desenhos de tubulações • Aplicação dos símbolos de luvas, niples e uniões em desenhos de tubulações luva união rosqueado e solda de encaixe solda de topo planta e elevação meia luva soldada tubo tubo planta e elevação Fig. 46 Fig. 47 Fig. 48 tubo meia luva soldada niple válvula luva plug união luva não é aplicável
  • 43.
    Tubulações Industriais –Tubos, Acessórios e Válvulas SENAI/RJ - 49 Tampão (ou caps) e bujões ou plugs Os tampões, também chamados de caps, e os bujões, conhecidos por plugs, têm a finalidade de fechar as extremidades de tubos, válvulas, instrumentos ou equipamentos. O tipo de ligação desses acessórios pode ser rosqueado, por solda de encaixe e solda de topo. Veja alguns tampões com diferentes tipos de ligação. Agora observe um bujão. Os bujões podem ser de diferentes tipos, de acordo com o tipo de cabeça, como mostrado nesta outra figura. Fig. 49 união Fig. 50 Fig. 51 bujão tubo tubo
  • 44.
    Tubulações Industriais –Tubos, Acessórios e Válvulas 50 - SENAI/RJ A representação dos tampões e dos bujões, em conformidade com a norma N-59 rev.C da Petrobras, bem como a sua aplicação em desenhos de tubulações é o que veremos a seguir. • Representação dos símbolos gráficos dos tampões e bujões para desenho de tubulações • Aplicação dos símbolos gráficos dos tampões e bujões para desenho de tubulações Fig. 52 cabeça cilíndrica cabeça sextavada cabeça quadrada tampões ou caps bujões ou plugs rosqueadoou soldadeencaixesoldadetopo plugs não é aplicável Fig. 53 Fig. 54 tampão luva soldada niple válvula plug 3 – 0 – 32 redução – 4” x 3” plug
  • 45.
    Tubulações Industriais –Tubos, Acessórios e Válvulas SENAI/RJ - 51 Exemplos de desenhos típicos para montagem de instrumentos Reduções As reduções têm a finalidade de mudar, para maior ou para menor, o diâmetro de uma tubulação, podendo utilizar os seguintes tipos de ligações: rosqueadas, soldas de encaixe, solda de topo e flangeada. São vários os tipos de redução, dentre os quais destacamos: tês, curvas ou joelhos de 90°e de 45°, luvas, reduções concêntricas e excêntricas, niples e buchas. Tê de redução Essas reduções são fabricadas para ligações com rosca, com solda de topo, solda de encaixe e flange. Os materiais mais utilizados nos tês de redução são o aço-carbono ASTM A.234 e o aço forjado. A Norma ANSI B.16.9 e a Norma ANSI B.31 estabelecem a faixa de pressão até 2000. Na figura que segue podemos ver alguns tês de redução, cada qual com um tipo distinto de ligação. Observe com atenção. Fig. 55 niple niple tê união bujão instrumento (P1) luva niple tubo válvula p/tub p/instr. p/tubp/instr.
  • 46.
    Tubulações Industriais –Tubos, Acessórios e Válvulas 52 - SENAI/RJ Curvas ou joelhos de redução São fabricados para ligações rosqueadas, com solda de topo ou solda de encaixe, segundo a Norma ANSI B 16.9, Norma ANSI B 16.11 e a Norma ASTM A 105 a 181. Nesta figura você pode ver um joelho de redução (90°). Fig. 56 rosqueado flangeado Fig. 57 redução tubo φ menor solda φ maior tubo φ maior
  • 47.
    Tubulações Industriais –Tubos, Acessórios e Válvulas SENAI/RJ - 53 Luvas de redução Esse tipo de redução é empregado em ligações rosqueadas e nas ligações com solda de encaixe. São fabricadas com diâmetro de 1/4" a 6" em ferro maleável e em aço forjado, de acordo com as determinações da Norma ASTM A. 197, Norma ASTM A - 105 e Norma ANSI B 16.11. Veja, na figura, uma luva de redução rosqueada. E agora, nessa outra figura, temos uma luva de redução para solda de encaixe. Reduções concêntricas e excêntricas Essas reduções são fabricadas para ligações de solda de topo segundo a Norma ANSI B 16.9 e a Norma B 16.31, para diâmetros (Ø) de 1/2" a 24". As reduções flangeadas, quando fabricadas em aço fundido de diâmetros compreendidos entre 2" e 24", a pressões de 150° a 1500°, obedecem à Norma ANSI 13.16.5. Quando elas são de ferro fundido, com diâmetro a partir de 1" até 24", a pressões de 125° a 250°, são normatizadas pela Norma ABNT P.PB. 15. Fig. 58 Fig. 59 tubo φ menor luva de redução tubo φ maior
  • 48.
    Tubulações Industriais –Tubos, Acessórios e Válvulas 54 - SENAI/RJ Vamos ver, então, alguns tipos de reduções concêntricas e excêntricas. Nessa primeira figura temos uma redução côncava para solda de topo. E nessa outra, podemos observar uma redução excêntrica para solda de topo. Finalmente, nas duas figuras que seguem temos, respectivamente, uma redução flangeada excêntrica e, depois, uma redução flangeada concêntrica. Fig. 60 Fig. 61 tubo φ maior redução excêntrica tubo φ menor Fig. 63 Fig. 62
  • 49.
    Tubulações Industriais –Tubos, Acessórios e Válvulas SENAI/RJ - 55 A simbologia ASA aplicada na representação gráfica das reduções concêntricas e excêntricas pode ser analisada logo a seguir, como também um exemplo de aplicação dessa representação em desenhos de tubulações. • Representação dos símbolos gráficos de reduções concêntricas e excêntricas para desenho de tubulações • Aplicação dos símbolos gráficos de reduções concêntricas e excêntricas em desenhos de tubulações Fig. 64 rosqueado e solda de encaixe solda de topo 6 x 4 flangeado reduções concêntricas reduções excêntricas 4 x 2 6 x 4 6 x 44 x 26 x 4 Fig. 65 redução concêntrica 6”x 4” V31 redução 6”x 6”x 4” 4”– A – 405 redução excêntrica 6”x 4” redução excêntrica 6”x 4”
  • 50.
    Tubulações Industriais –Tubos, Acessórios e Válvulas 56 - SENAI/RJ Niples de redução A aplicação mais comum dos niples de redução é para diâmetro de até 4", rosqueados ou com solda de encaixe. De acordo com as extremidades, os niples de redução se diferenciam e recebem diferentes nomes, que vamos ver agora, juntamente com a figura que ilustra cada um deles. • BET (Both End Thread) Para extremidades rosqueadas. • BEP (Both End Plain) Para extremidades lisas. • LET-SEP (Lang End Thread - Small And Plain) Para extremidade maior rosqueada e extremidade menor plana. Fig. 66 Fig. 67 Fig. 68
  • 51.
    Tubulações Industriais –Tubos, Acessórios e Válvulas SENAI/RJ - 57 • LEP-SET (Lange And Plain - Small And Thred) Para extremidade maior lisa e extremidade menor rosqueada. Nesta outra figura, você pode observar um exemplo de aplicação de niples de redução e de tê de redução. Os tês, luvas e niples de redução não têm uma simbologia específica para representação gráfica em desenhos de tubulações. Por isso, são utilizados os símbolos normais, porém escrevendo-se as especificações de reduções próximas aos diâmetros nominais. Veja os símbolos gráficos de tês e luvas de redução para desenhos de tubulação, de acordo com a norma N-59 rev.C set.99 da Petrobras. Fig. 69 Fig. 70 2" Fig. 71 3" niple 3" união 3" válvula 2" válvula retenção união 3" niple normal niple de redução 3" x 2" (LEP-SET) redução 3" x 3" x 2" luva de redução 4" x 3" 3" Tê de red. 3" X 2"
  • 52.
    Tubulações Industriais –Tubos, Acessórios e Válvulas 58 - SENAI/RJ Buchas de redução As buchas de redução são geralmente rosqueadas, com dimensões de 1/2" a 4", e de aço forjado, segundo a Norma ASTM A. 105, com classe de pressão de 2000, 3000 a 6000. A título de exemplo, observe uma bucha de redução rosqueada. Flanges Os flanges são acessórios destinados a fixar tubos entre si ou tubos com válvulas ou, ainda, com bocais de equipamentos como bombas, compressores, permutadores, torres e outros. Eles possibilitam maior facilidade de desmontagem que os demais tipos de ligações. As normas ANSI B.16.5 (American National Standard Institute) padronizam dimensões nominais de flanges de 1/2" até 24’ de diâmetro. As normas também estabelecem faixas de temperatura, que variam de 100o C a 1000o C, a pressões de serviço que variam de 1000 a 2500PSI. As pressões são agrupadas em 7 classes que são: 150, 300, 400, 600, 1500 e 2500PSI. Fig. 72 tubo φ menor tubo φ maior bucha de redução Fig. 73 parafusos porca tubo tubo flanges equipamento flange flange
  • 53.
    Tubulações Industriais –Tubos, Acessórios e Válvulas SENAI/RJ - 59 Os tipos de flanges mais comum são: - integral; - de pescoço; - rosqueado; - sobreposto; - de encaixe; - solto; - cego; - flange com placa de orifício (para instrumentos). Vamos comentar e ilustrar alguns desses flanges. Flange integral Esse tipo de flange é antigo, bastante resistente, e restrito ao tubo de ferro fundido. Veja um flange integral na figura. Flange de pescoço (Welding Neck Wn) É o flange mais usado em tubulações industriais, sendo bastante resistente. Ele é ligado ao tubo por uma solda de topo. Os tubos devem ter as extremidades biseladas para permitir a soldagem. Por isso, esse tipo de flange é de custo maior que os demais. Fig. 74 tubo furos para parafusos e porcas
  • 54.
    Tubulações Industriais –Tubos, Acessórios e Válvulas 60 - SENAI/RJ Observe um flange de pescoço. Veja um exemplo de aplicação de flange de pescoço. Flange rosqueado (Screwed Scr) É aplicado principalmente em tubos de materiais não-soldáveis, tais como ferro fundido e alguns aços-ligas não-soldáveis. São bastante empregados em tubulações para água e ar comprimido. Nas duas figuras que seguem observe, primeiramente, um flange rosqueado. E, logo depois, um exemplo de aplicação desse tipo de flange. Fig. 75 pescoço Fig. 76 Fig. 77 pescoço tubo solda flange Bflange A tubo B tubo A porcas parafusos flange tubo
  • 55.
    Tubulações Industriais –Tubos, Acessórios e Válvulas SENAI/RJ - 61 Flange sobreposto (Slip on - SO) É aplicado em serviço de baixas pressões e temperaturas. Tem custo baixo, sendo de fácil montagem e alimento. A figura ilustra um flange sobreposto. E nesta outra figura podemos ver um exemplo de aplicação de flange sobreposto. Fig. 78 flange Bflange A tubo Btubo A Fig. 80 Fig. 79 flanges tubo Btubo A solda em ângulo tubo solda solda
  • 56.
    Tubulações Industriais –Tubos, Acessórios e Válvulas 62 - SENAI/RJ Flange cego É o flange que tem a finalidade de fechar extremidades de tubos. É necessário que haja na extremidade do tubo um flange qualquer, para que possa haver a fixação do flange cego. Veja um flange cego. Observe também um exemplo de aplicação do flange cego nesta outra figura. Vejamos agora como é feita a representação gráfica de flanges, de acordo com a simbologia do sistema ASA; depois observe três exemplos de aplicação dessa representação em desenhos de tubulações. Fig. 81 solda Fig. 82 tubo flangeflange cego junta
  • 57.
    Tubulações Industriais –Tubos, Acessórios e Válvulas SENAI/RJ - 63 • Representação dos símbolos gráficos de flanges • Aplicação da representação dos símbolos gráficos de flanges para desenhos de tubulações Fig. 83 rosqueado ou solda de encaixe sobreposto pescoço virola cego flange cego flange de pescoço Fig. 84 Fig. 85 suporte flange cego 8” – AJ – 513 – 12 – A 8” – AJ – 513 – 12 – A 400 360700 flange sobreposto flange de pescoço
  • 58.
    Tubulações Industriais –Tubos, Acessórios e Válvulas 64 - SENAI/RJ Flange com placa de orifício Esse tipo de flange é o flange sobreposto ou o de pescoço ou, ainda, o rosqueado que sofre adaptações para permitir a colocação de uma placa de orifício, de modo a tornar possível a medição de vazão. Em cada flange há 2 furos roscados para tomadas de pressão para os instrumentos. Fazer medição com placas de orifício é o meio mais sensível, barato e mais utilizado em planta de processo. A placa com um orifício é inserida na linha, de forma que restringe a seção do fluxo, causando uma variação de pressão que está em relação com o fluxo que circula. O tubo Venturi ou o tubo de Pilot são similares em princípio, sendo utilizados quando são especificados pela engenharia de instrumentação. As placas de orifício são colocadas entre dois flanges apropriados, denominados flanges de orifício, e utilizadas em linha de processo de 2" a 12" de diâmetro. As normas ANSI B 16.20 regulam as dimensões dos diversos tipos de flanges de orifício. A maioria dos materiais de fabricação dos flanges é da norma ASTM A.105 gr.2. Os parafusos e porcas são ASTM A.307 gr.B, com dimensões e tipos das normas ANSI 13.2.1. As juntas são idênticas às dos flanges comuns. A figura mostra um flange com placas de orifício. A seguir você verá como os flanges com placa de orifício são representados graficamente e, logo depois, vai analisar o exemplo de aplicação dessa simbologia. Fig. 86 placa de orifício flange tubo tubulação de impulso (tubing) flange tubo
  • 59.
    Tubulações Industriais –Tubos, Acessórios e Válvulas SENAI/RJ - 65 • Representação gráfica de flanges com placa de orifícios para instrumentação A norma ISA S 5.1 – Instrumentation Symbols and Identification é aplicada para simbologia e identificação dos símbolos para instrumentação. • Flange de orifício (desmontado) Fig. 87 placa de orifício (tomada de pressão no próprio) placa de orifício conectado a um indicador de fluxo tipo pressão diferencial placa de orifício com tomada via contraída ou no tubo placa de orifício com tomada na via contraída ou no tubo conectado a um transp. de fluxo tipo pressão diferencial tomada de teste em via contraída ou no tubo sem a placa de orifício placa de orifício e equipamento de troca rápida parafuso tubo placa de orifício Fig. 88 bujão juntas flange (de pescoço) tubo porca arruela
  • 60.
    Tubulações Industriais –Tubos, Acessórios e Válvulas 66 - SENAI/RJ Exemplo de instalação típica de instrumentação em uma tubulação Válvulas As válvulas são dispositivos que permitem controlar ou interromper o fluxo em uma tubulação, sendo um dos acessórios mais importantes. Neste item vamos mostrar as diversas válvulas e seus respectivos símbolos gráficos para o desenho de tubulações e fluxogramas, sem entrar em detalhes sobre seu funcionamento ou aplicação. Fig. 89 válvula globo Fig. 90 FE - Elemento primário do fluxo FT - Transmissor ou fluxo FIC - Indicador e controlador de fluxo 0 – 210 – 6" – 3BA 0 – 210 – 6" – 3BA 0 – 215 – 3" – 2B 0–212–2"–3BA 0–212–2"–3BA 1 ½" 2" FC ¾
  • 61.
    Tubulações Industriais –Tubos, Acessórios e Válvulas SENAI/RJ - 67 A inspeção e os testes de válvulas são normatizados pela Norma API-598. Já as dimensões, os materiais de controle, as condições de trabalho, os testes de aceitação para refinarias de alguns tipos de válvulas devem obedecer às determinações da Norma ABNT EB-141, Norma P-PB-37 e Norma ANSI -B-16.10. Classificação das válvulas Considerando a finalidade das válvulas nas tubulações de processo, elas são classificadas em três grandes grupos, a saber: - válvulas que controlam o fluxo em qualquer direção; - válvulas que permitem o fluxo em uma só direção; - válvulas controladoras de pressão. Cada uma dessas válvulas, por sua vez, podem ser de tipos variados, como vemos neste esquema. 1. válvulas que controlam o fluxo em qualquer direção de bloqueio de regulagem de gaveta de macho de esfera de globo de agulha de borboleta de diafragma de controle 2. válvulas que permitem fluxo em uma só direção de retenção de levantamento e de pé de retenção de “portinhola” de retenção de “esfera” de retenção e fechamento 3. válvulas controladoras de pressão a jusante a montante redutiva de pressão reguladora de pressão de segurança e alívio de contrapressão
  • 62.
    Tubulações Industriais –Tubos, Acessórios e Válvulas 68 - SENAI/RJ Tipos de ligações das válvulas As extremidades das válvulas devem estar em conformidade com a Norma ANSI 11.31. E as extremidades dos tubos, para aplicação das válvulas, podem ser de diferentes tipos. Extremidade rosqueada É aplicada em válvulas de 4" ou menos, sendo empregada em tubulações em que as ligações rosqueadas são permitidas. Extremidade para solda de encaixe Aplicada em válvulas de aço de menos de 2", e empregada em tubulações por solda de encaixe. Extremidade flangeada Esse tipo de extremidade é aplicada em quase todas as válvulas, de qualquer material, e empregada em tubulações industriais de 2" ou maiores. Extremidade para solda de topo Aplicadas em válvulas de aço de mais de 2", em serviços com pressões muito altas ou com fluidos em que se exijam absoluta vedação e nenhum risco de vazamento. Tipos de válvulas e respectivas simbologias para desenhos Vejamos agora, por meio de figuras, os diferentes tipos de válvulas que acabamos de analisar e a simbologia empregada para representá-las em desenhos de tubulações. Observe cada caso com atenção. Válvulas que controlam o fluxo em qualquer direção A seguir apresentamos as válvulas que controlam o fluxo em qualquer direção e, logo depois de cada uma, você encontrará a simbologia adotada para representar graficamente essas válvulas em desenhos de tubulações.
  • 63.
    Tubulações Industriais –Tubos, Acessórios e Válvulas SENAI/RJ - 69 • Válvula de gaveta (de bloqueio) • Válvula de macho (de bloqueio) Fig. 91 gaveta tubotubo gaveta rosqueada ou solda de encaixe solda de topo flangeada planta/elevação Fig. 92 – Simbologia norma N-59 rev. C - set.99 da Petrobras Fig. 93 alavanca flange orifício de passagem macho macho orifício de passagem flange
  • 64.
    Tubulações Industriais –Tubos, Acessórios e Válvulas 70 - SENAI/RJ • Válvula de esfera (de bloqueio) rosqueada ou solda de encaixe solda de topo flangeada planta/elevação Fig. 94 – Simbologia norma N-59 rev. C - set.99 da Petrobras Fig. 95 rosqueada ou solda de encaixe solda de topo flangeada planta/elevação Fig. 96 – Simbologia norma N-59 rev. C - set.99 da Petrobras esfera
  • 65.
    Tubulações Industriais –Tubos, Acessórios e Válvulas SENAI/RJ - 71 • Válvula de globo (de regulagem) • Válvula de agulha (de regulagem) rosqueada ou solda de encaixe solda de topo flangeada planta/elevação Fig. 98 – Simbologia norma N-59 rev. C - set.99 da Petrobras Fig. 97 Fig. 99 globo agulha
  • 66.
    Tubulações Industriais –Tubos, Acessórios e Válvulas 72 - SENAI/RJ • Válvula de borboleta (de regulagem) rosqueado ou solda de encaixe solda de topo flangeada planta/elevação Fig. 100 – Simbologia norma N-59 rev. C - set.99 da Petrobras rosqueada ou solda de encaixe solda de topo flangeada planta/elevação Fig. 102 – Simbologia norma N-59 rev. C - set.99 da Petrobras Fig. 101
  • 67.
    Tubulações Industriais –Tubos, Acessórios e Válvulas SENAI/RJ - 73 • Válvula de diafragma (de regulagem) • Válvula de controle (de regulagem) - Norma ISA RP41 (para dimensões); norma S.51 (para simbologia) rosqueada ou solda de encaixe solda de topo flangeada planta/elevação Fig. 104 – Simbologia norma N-59 rev. C - set.99 da Petrobras Fig. 103 diafragma fechado aberto Fig. 105 diafragma de ar haste
  • 68.
    Tubulações Industriais –Tubos, Acessórios e Válvulas 74 - SENAI/RJ Ainda em relação às válvulas de controle, observe, nesta outra figura, os símbolos empregados para a sua representação gráfica em fluxogramas. Válvulas que permitem fluxo em uma só direção Agora, para esse grupo de válvulas, primeiro vamos apresentar a ilustração de cada uma delas somente depois, ao final, apresentaremos a representação gráfica, uma vez que nesse grupo não há uma simbologia específica para cada tipo em separado. rosqueado ou solda de encaixe solda de topo flangeada planta/elevação Fig. 106 – Simbologia norma N-59 rev. C - set.99 da Petrobras Fig. 107 – Simbologia norma N-59 rev. C - set.99 da Petrobras operada por êmbolo hidráulico operada por motor operada por solenóide válvula auto atuada de diafragma transmissão pneumática entre instrumento e válvula de diafragma controle manual em linha de processo atuador manual
  • 69.
    Tubulações Industriais –Tubos, Acessórios e Válvulas SENAI/RJ - 75 Acompanhe as figuras com bastante atenção. • Válvula de retenção de levantamento • Válvula de retenção de portinhola • Válvula de retenção de esfera Fig. 108 Fig. 109 Fig. 110 saídaentrada tampão tampo pino flange de saída saída flange de entrada entrada sede tampão saída entrada esfera
  • 70.
    Tubulações Industriais –Tubos, Acessórios e Válvulas 76 - SENAI/RJ • Válvula de retenção de fechamento • Representação gráfica das válvulas de retenção para desenhos de tubulação • Representação gráfica das válvulas de retenção para fluxogramas Fig. 111 haste rosqueada guia entrada Fig. 112 – Simbologia norma N-59 rev. C - set.99 da Petrobras rosqueado ou solda soquete solda de topo flangeada plantae elevação plantae elevação retenção e fechamento somente retenção Fig. 113 retenção retenção e fechamento haste do tampão tampão saída
  • 71.
    Tubulações Industriais –Tubos, Acessórios e Válvulas SENAI/RJ - 77 • Válvulas controladoras de pressão Dentre os diferentes tipos de válvula que compõem esse grupo, apresentamos aqui, a título de exemplo, apenas a válvula reguladora de pressão, que você vê nesta figura. Observe como é feita a representação gráfica dessa válvula em desenhos de tubulações. Já neste outro quadro que segue, você poderá analisar a simbologia empregada para representar graficamente as válvulas de segurança e alívio, que também são do tipo controladoras de pressão. Fig. 114 bocal de entrada sede tampão bocal de saída mola porca de regulagem Fig. 115 – Simbologia norma N-59 rev. C - set.99 da Petrobras rosqueada ou solda de encaixe solda de topo flangeada plantaeelevação mola com peso mola com peso mola com peso
  • 72.
    Tubulações Industriais –Tubos, Acessórios e Válvulas 78 - SENAI/RJ Fig. 116 – Simbologia norma N-59 rev. C - set.99 da Petrobras angular (mola peso ou piloto integral) reta (mola, peso ou piloto integral angular para vácuo angular (para pressão e vácuo) angular atuada pela solenóide integral disco de rutura para pressão e para vácuo
  • 73.
    Tubulações Industriais –Tubos, Acessórios e Válvulas SENAI/RJ - 79 Praticando 1. Cite alguns objetivos das normas de tubulações. 2. Cite os principais processos de fabricação de tubos sem costura. 3. Considerando os tubos com costura e os tubos sem costura, responda às questões: a) Qual dos dois é de maior resistência? b) Qual deles é de uso mais freqüente? c) Qual é o de mais baixo custo? 4. Quais são os dois processos empregados para enrolar as chapas para serem soldadas? 5. Qual é o principal material utilizado na fabricação de tubos? 6. Cite alguns fatores que influenciam na escolha do material da tubulação, em uma unidade de processo. 7. Quais são as três dimensões principais de um tubo? 8. Relacione os tipos de extremidades de tubos. 9. Para um tubo de 24", determine: a) o seu diâmetro externo. b) o seu interno. c) a espessura para SCH 30 e SCH 60. 10. Desenhe o modo como são representadas: a) as linhas de processo. b) as linhas de sinal pneumático. c) as linhas de sinal hidráulico.
  • 74.
    Desenho isométrico de tubulações 2 Nestaseção... Isométricos Simbologia de tubulações para desenhos isométricos Exemplos de desenhos isométricos Identificação dos elementos da tubulação em desenhos isométricos Praticando
  • 75.
    Tubulações Industriais –Desenho Isométrico de Tubulações SENAI/RJ - 83 Projetos O projeto de uma rede ou de um sistema de tubulações pode ser um projeto isolado ou, como é mais freqüente, fazer parte de um projeto integrado de uma instalação industrial de processo completo, que inclui também várias outras especialidades de engenharia. Nos casos de um projeto global de uma instalação industrial, é prática corrente subdividi-lo em partes que são, por exemplo: projetos de processamento, de construção civil, de elétrica, de instrumentação e de tubulações, aí incluindo os fluxogramas, as plantas de locação, as plantas de tubulações propriamente ditas e os desenhos isométricos. É desses desenhos que trataremos neste segundo bloco de estudos, de modo que você possa esboçar planta baixa e fazer desenhos isométricos das tubulações corretamente. Isométricos Chamamos de isométricos os desenhos feitos em perspectiva isométrica, segundo os princípios técnicos apresentados no material didático referente a desenho técnico e a partir da planta baixa. No desenho isométrico não são usadas escalas, embora seja mantida uma determinada proporção entre as dimensões. Geralmente, faz-se um isométrico para cada tubulação individual de um grupo de tubulações próximas. Os tubos e as curvas, quaisquer que sejam seus diâmetros, são representados por um traço único, na posição de sua linha de centro. Aplicação dos desenhos isométricos Os isométricos são aplicáveis para trechos da tubulação onde ocorram, conjuntamente, mudanças de direção,bifurcação, bloqueio etc. impossíveis de serem representados em plantas. Normalmente, os isométricos não são aplicados em trechos retos de tubulações. Os desenhos isométricos fornecem dimensões de trechos de tubos, ângulos, raios, curvaturas, elevações de todos os tubos, localização e orientação de todos os bocais de vasos e equipamentos ligados à tubulação representada. Eles dão uma visão espacial de um segmento de tubulação, que deve ser tomada como base para verificação de controle dimensional.
  • 76.
    Tubulações Industriais –Desenho Isométrico de Tubulações 84 - SENAI/RJ Um dos principais objetivos e aplicações dos desenhos isométricos é o de orientar a construção do spool e do desenho isométrico simplificado, que veremos adiante. Desenho de spools São desenhos fabricados a partir dos desenhos isométricos, sendo, portanto, trechos da tubulação contida num isométrico. Cada spool representa a ligação de um certo número de acessórios e de trechos de tubos em tubulação soldada. Dentre outros desenhos auxiliares de montagem, o spool permite que todos os trechos da tubulação que contêm pedaços pequenos de tubos e de conexões sejam pré-fabricados, isto é, ligados fora do local de montagem. Veja desenho típico de spool. Isométrico simplificado Essa é outra aplicação do isométrico, empregado para montagem de instrumentos. Na figura que segue você pode ver um desses desenhos. Fig. 1 – Tolerâncias de pré-montagem de tubulações 1 distância entre faces de flanges, entre linhas de centro e entre face de flange e linha de centro ± 3mm 2 raio de curvatura de tubos curvados ± 3% do diametro nominal 3 deslocamento do flange ou da derivação ± 1,5mm 4 rotação do flange (medida como indicado) ± 1,5mm 5 paralelismo da face do flange ± 1,5mm ou ± 1/2o (o menor) 6 desalinhamento entre linhas de centro ±1,5mm 7 comprimento a mais nas soldas de campo: até φ 4”: 100mm mais de φ 4”: 150 a 200mm obs.: as tolerâncias não são acumulativas.
  • 77.
    Tubulações Industriais –Desenho Isométrico de Tubulações SENAI/RJ - 85 Fig. 2
  • 78.
    Tubulações Industriais –Desenho Isométrico de Tubulações 86 - SENAI/RJ Folha típica de desenho isométrico Nas empresas que executam projetos, os isométricos são desenhados em folhas de papel especiais, com as linhas isométricas (30°) bem claras que já estão traçadas, de modo a facilitar o desenhista. Veja um exemplo reduzido de uma folha típica para desenhos isométricos, com linhas traçadas na horizontal e na vertical. Como você deve ter observado, a folha para isométrico possui um espaço para a legenda e também um espaço para a lista de componentes, tubos, conexões, flanges etc., contidos no trecho de tubulação ali representado. Observe, nesta outra figura, um modelo de lista de material e legenda. Fig. 3 espaço para a simbologia e lista de componentes da linha LEGENDA
  • 79.
    Tubulações Industriais –Desenho Isométrico de Tubulações SENAI/RJ - 87 Fig. 4 Toda folha de isométrico tem uma numeração que deve ser combinada com a numeração das plantas, de maneira que seja fácil identificar em qual planta está representada uma linha que aparece em determinado isométrico e vice-versa. Por exemplo, a planta n° 42 corresponde à série de isométricos começada pelo n° 4.202. Já a planta n° 52 corresponde à série começada pelo n° 5.201, e assim por diante. As folhas de desenhos isométricos (assim como as plantas) também devem apresentar a indicação da orientação, isto é, o Norte de Projeto (NP), para possibilitar a localização dos tubos e equipamentos no terreno. Torne a observar o exemplo de folha de isométrico mostrada anteriormente e veja que o NP está assinalado em seu canto superior direito. LISTA DO MATERIAL POS. NO . ESPECIFICAÇÃO QUANT. TUBOS CONEXÕES FLANGES OUTROS CARIMBO ESPECIFICAÇÃO . ___ NO . REQUERIDO . ___ 3 2 1 REVISÃO NO . PROJETO PROJETO VERIF. APROV. DATA LINHA NO . ESCALA FOLHA
  • 80.
    Tubulações Industriais –Desenho Isométrico de Tubulações 88 - SENAI/RJ Há símbolos especiais para indicar o Norte do Projeto – NP ou N. Nas figuras que seguem você pode observar a simbologia empregada em plantas e em isométricos. E agora veja os símbolos empregados para indicar o NP, quando se trata de desenhos isométricos. Simbologia de tubulações para desenhos isométricos Agora, neste item, vamos ver como os diferentes elementos de uma tubulação - tubos, acessórios e válvulas - são representados em desenhos isométricos. Representação de tubos em isométricos Nos desenhos isométricos, os tubos verticais são representados por traços verticais, e os tubos horizontais são representados por traços inclinados a 30° para a direita ou para a esquerda, dependendo da orientação no Norte do Projeto (NP). Fig. 5 – Para plantas Fig. 6 – Para isométricos
  • 81.
    Tubulações Industriais –Desenho Isométrico de Tubulações SENAI/RJ - 89 Agora veja, nas seis figuras que seguem, exemplos de isométricos acompanhados da planta correspondente. Observe as cotas. Fig. 7 Fig. 8 Fig. 9
  • 82.
    Tubulações Industriais –Desenho Isométrico de Tubulações 90 - SENAI/RJ Fig. 10 Fig. 11 Fig. 12
  • 83.
    Tubulações Industriais –Desenho Isométrico de Tubulações SENAI/RJ - 91 Tubos fora das direções ortogonais Os tubos fora de qualquer uma das direções ortogonais são representados por traços inclinados com ângulos diferentes de 30º. No desenho deve ser indicado o ângulo verdadeiro de inclinação do tubo, com qualquer uma das três direções ortogonais básicas. Para facilitar o entendimento, é comum desenhar, em traços finos, o plano do ângulo ou do paralelogramo do qual a direção inclinada do tubo seja diagonal. Vamos analisar o exemplo ilustrado a seguir, em que vemos o tubo com mudança de direção, porém dentro do plano vertical. Observe que na anotação 45º V, a letra V significa vertical. Agora, nesta outra figura, veja o tubo com mudança de direção dentro do plano horizontal. Na anotação 45º H, a letra H significa horizontal. Em qualquer dos dois planos, então, é necessário cotar os dois catetos e o ângulo seguido das letras V ou H, de acordo com o caso. Fig. 13 Fig. 14
  • 84.
    Tubulações Industriais –Desenho Isométrico de Tubulações 92 - SENAI/RJ Quando um trecho do tubo muda de direção e de plano, ficando também fora das direções ortogonais, a representação é feita envolvendo-se a linha por um polígono, como mostrado neste exemplo. Método de cotagem para tubos fora dos planos ortogonais São várias as situações em que os tubos estão fora dos planos ortogonais, exigindo métodos de cotagem diferentes. Vejamos essas situações e esses métodos. • Trecho inclinado de 45° no mesmo plano (horizontal) Nesse caso, deverão ser cotados o ângulo acompanhado da letra H e um dos catetos. Tanto o ângulo como o cateto podem ser cotados em qualquer lado. Observe este exemplo que ilustra tubos com mudança de direção 45° na horizontal. Fig. 15 Fig. 16
  • 85.
    Tubulações Industriais –Desenho Isométrico de Tubulações SENAI/RJ - 93 • Trecho inclinado de 45° no mesmo plano vertical Quando o trecho está no plano vertical deverão ser cotados o ângulo acompanhado da letra V e um dos catetos. Na figura temos um exemplo desse caso. • Trecho inclinado de ângulos diferentes de 45° Se o trecho estiver no plano horizontal ou vertical, então é preciso cotar os dois catetos e o ângulo de 60º, seguido das letras H ou V, de acordo com o caso. Veja o exemplo da figura que mostra tubos com mudança de direção de 60º, horizontal e vertical. Fig. 17 Fig. 18
  • 86.
    Tubulações Industriais –Desenho Isométrico de Tubulações 94 - SENAI/RJ • Trecho inclinado com mudança de direção e de plano Nesse outro caso devem ser indicados os ângulos α e β, além das dimensões A, B e C, como vemos nessa figura, em que o tubo está inclinado. Representação de curvas e joelhos em isométricos Tubos curvados, curvas ou joelhos são representados em desenhos isométricos por curvas em perspectivas, como você pode ver neste exemplo. Essas curvas, quando os desenhos isométricos são pequenos, são feitas à mão livre ou, então, com gabaritos. Vale lembrar que os tubos curvados, curvas ou joelhos também podem ser representados por ângulos retos. Observe. Fig. 19 Fig. 20
  • 87.
    Tubulações Industriais –Desenho Isométrico de Tubulações SENAI/RJ - 95 Nos isométricos, assim como nas plantas de tubulações, as conexões são representadas pela mesma simbologia. Analise esses exemplos de simbologia para conexões soldadas, rosqueados e flangeadas. Representação de acessórios em isométricos Vamos analisar, agora, a representação de alguns tipos de acessórios de tubulações em desenhos isométricos, tais como flanges, reduções, uniões e luvas, etc. Reduções Observe as duas figuras que mostram a representação de reduções em desenhos isométricos. Fig. 21 Fig. 22 Fig. 23 solda de topo rosqueado ou solda de encaixe flangeada redução excêntrica redução concêntrica
  • 88.
    Tubulações Industriais –Desenho Isométrico de Tubulações 96 - SENAI/RJ Flanges Agora vejamos como diferentes tipos de flange são representados em desenhos isométricos. Outros acessórios Vários outros acessórios também são representados de modo especial em desenhos isométricos, como mostramos a seguir. Observe cada um com atenção. Fig. 24 flange de pescoço flange cego flange de orifício bocal de vaso ou equipamento Fig. 25 bolsa de drenagem dreno respiro ejetor purgador de vapor filtro Y união luva bujão tê soldado de topo boca de lobo com reforço boca de lobo com sela colar soldado tê 45o boca de lobo tê rosqueado curva a 45o curva a 90o luva
  • 89.
    Tubulações Industriais –Desenho Isométrico de Tubulações SENAI/RJ - 97 Representação das válvulas em isométricos Veja agora como é feita a representação de diferentes tipos de válvulas em desenhos isométricos. Posição das hastes das válvulas Em relação à posição das hastes das válvulas, vamos destacar aqui algumas situações e a respectiva representação em desenhos isométricos. Observe as figuras em cada caso. • Tubos horizontais com as hastes na vertical Fig. 26 Fig. 27 válvula de gaveta válvula globo válvula macho válvula de esfera válvula de retenção válvula de controle válvula de segurança ou de alívio válvula motorizada válvula com volante para corrente válvula de borboleta flange de pescoço flange sobreposto filtro “Y” purgador de vapor ejetor bocal de vaso ou equipamento haste vertical tubo horizontal sentido do fluxo
  • 90.
    Tubulações Industriais –Desenho Isométrico de Tubulações 98 - SENAI/RJ • Tubos horizontais com as hastes na horizontal • Tubos verticais com as hastes horizontais e inclinadas Ainda em relação às hastes das válvulas, vale observar que, quando elas são pequenas, como as válvulas de drenos ou ventes, por exemplo, as hastes não devem ser desenhadas, como mostram esses dois exemplos. Fig. 28 Fig. 29 Fig. 30 tubo horizontal haste horizontal tubo vertical tubo vertical haste inclinada hastes horizontais
  • 91.
    Tubulações Industriais –Desenho Isométrico de Tubulações SENAI/RJ - 99 Nos desenhos isométricos também devem aparecer todas as válvulas e todos os acessórios de tubulação, tais como flanges, reduções etc., bem como a localização de todas as emendas soldadas, rosqueadas ou flangeadas. Veja isso no exemplo ilustrado a seguir, que mostra, primeiramente, um isométrico de uma linha com válvulas em diversas posições. E depois uma planta correspondente a esse isométrico. Fig. 31 – Isométrico Fig. 32 – Planta
  • 92.
    Tubulações Industriais –Desenho Isométrico de Tubulações 100 - SENAI/RJ Indicação de fluxo em isométricos Em todas as linhas de um desenho isométrico devem aparecer as setas indicativas de sentido do fluxo. Essas setas, de preferência, devem ser colocadas antes de toda mudança de direção, tomando o cuidado para não colocá-las sobre uma conexão. Observe este exemplo. Fig. 33 planta sentido do fluxo isométrico
  • 93.
    Tubulações Industriais –Desenho Isométrico de Tubulações SENAI/RJ - 101 Exemplos de desenhos isométricos Agora que já analisamos a representação de diferentes componentes de tubulações em isométricos, vamos ver alguns exemplos gerais de aplicação dessa representação. • Exemplo de isométrico cotado e respectiva planta baixa Fig. 34 –
  • 94.
    Tubulações Industriais –Desenho Isométrico de Tubulações 102 - SENAI/RJ • Exemplo de isométrico com nomenclatura dos componentes • Exemplo de isométrico com observações para desenho Fig. 35 Fig. 36
  • 95.
    Tubulações Industriais –Desenho Isométrico de Tubulações SENAI/RJ - 103 Identificação dos elementos da tubulação em desenhos isométricos Os tubos, vasos, bombas, compressores e demais equipamentos aparecem indicados nos isométricos apenas pela sua identificação, posição de linha de centro e pelos bocais de ligação com as tubulações. As válvulas são usualmente designadas por siglas convencionais, como, por exemplo, 2" VGA 4" VGA. Essa identificação é a mesma empregada em plantas de tubulação. Nos isométricos devem figurar, detalhadamente, inclusive os acessórios pequenos e secundários que existam nas tubulações, tais como: válvulas de dreno e de respiro, bocais para retirada de amostras etc. Os conjuntos formados pelas válvulas de controle e respectivas tubulações de contornos e válvulas de bloqueio e regulagem são mostrados peça por peça. Nos desenhos que aparecem a seguir podemos identificar algumas dessas informações. Observe. • Exemplo 1 Fig. 37
  • 96.
    Tubulações Industriais –Desenho Isométrico de Tubulações 104 - SENAI/RJ • Exemplo 2 Fig. 38
  • 97.
    Tubulações Industriais –Desenho Isométrico de Tubulações SENAI/RJ - 105 Praticando 1. Desenhe o isométrico correspondente às plantas apresentadas em cada caso a seguir. Represente as conexões conforme as indicações. • Caso 1 • Caso 2 Fig. 39 Fig. 40 planta (solda de encaixe) N N planta (rosqueada)
  • 98.
    Tubulações Industriais –Desenho Isométrico de Tubulações 106 - SENAI/RJ • Caso 3 2. Observe o desenho e depois escreva as denominações e o tipo de ligação dos acessórios nele indicados. Fig. 41 Fig. 42 planta N 1. _______________________ 2. _______________________ 3. _______________________ 4. _______________________ 5. _______________________ 6. _______________________ 7. _______________________ 8. _______________________ 9. _______________________ 10. ______________________ 11. ______________________ 12. ______________________
  • 99.
    Tubulações Industriais –Desenho Isométrico de Tubulações SENAI/RJ - 107 Fig. 43 Fig. 44 3. Desenhe os isométricos correspondentes às plantas básicas a seguir, e cote. • Planta 1 • Planta 2 NP
  • 100.
    Tubulações Industriais –Desenho Isométrico de Tubulações 108 - SENAI/RJ • Planta 3 4. Represente em planta, num só desenho, o isométrico apresentado para as tubulações doVASO 310. Fig. 45 Fig. 46
  • 101.
    Tubulações Industriais –Desenho Isométrico de Tubulações SENAI/RJ - 109 5. Execute as plantas das linhas 3" 0 306 B e 3" 0334-B do isométrico apresentado. 6. Desenhe o isométrico correspondente às linhas G3" 1003Ca e G3 1004Ca da planta e da elevação apresentadas a seguir. Fig. 47 Fig. 48
  • 102.
    Tubulações Industriais –Desenho Isométrico de Tubulações 110 - SENAI/RJ 7. Assinale com um X a representação gráfica que julgar correta.
  • 103.
    Tubulações Industriais –Desenho Isométrico de Tubulações SENAI/RJ - 111 Assinale com um X a representação gráfica que julgar correta.
  • 104.
    Tubulações Industriais –Desenho Isométrico de Tubulações 112 - SENAI/RJ Fig. 50
  • 105.
  • 106.
    Tubulações Industriais –Anexos SENAI/RJ - 115 Toda folha de isométrico tem uma numeração que deve ser combinada com a numeração das plantas, de maneira que seja fácil identificar em qual planta está representada uma linha que aparece em determinado isométrico e vice-versa. Por exemplo, a planta n°42 corresponde à série de isométricos começada pelo n° 4.202. Já a planta n°52 corresponde à série começada pelo n° 5.201, e assim por diante. Fig. 50
  • 107.
    Tubulações Industriais –Anexos 116 - SENAI/RJ
  • 108.
    Tubulações Industriais –Anexos SENAI/RJ - 117
  • 109.
    Tubulações Industriais –Anexos 118 - SENAI/RJ Emprego das convenções de plantas
  • 110.
    Tubulações Industriais –Anexos SENAI/RJ - 119 Corte transversal em uma unidade de processo
  • 111.
    Tubulações Industriais –Anexos 120 - SENAI/RJ Unidade 3 – Planta das tubulações – Área 32
  • 112.
    Tubulações Industriais –Anexos SENAI/RJ - 121 Unidade 3 – Elevação olhando para o norte
  • 113.
    Tubulações Industriais –Anexos 122 - SENAI/RJ Unidade 3 – Elevação olhando para Leste
  • 114.
    Tubulações Industriais –Anexos SENAI/RJ - 123 Unidade 3 – Planta das tubulações – Área 33
  • 115.
    Tubulações Industriais –Anexos 124 - SENAI/RJ Unidade 3 – Planta das tubulações – Área 34
  • 116.
    Tubulações Industriais –Anexos SENAI/RJ - 125
  • 117.
    Tubulações Industriais –Anexos 126 - SENAI/RJ Convenções para fluxograma
  • 118.
    Tubulações Industriais –Anexos SENAI/RJ - 127 Convenções para plantas
  • 119.
    Tubulações Industriais –Anexos SENAI/RJ - 129 Referências bibliográficas •ABNT. Norma NBR11185 - NB126 12: Projeto de tubulações de ferro fundido dúctil centrifugado, para condução de água sob pressão. Rio de Janeiro: ABNT, 1994. • ABNT. Norma NBR8190 - SB124 10: Simbologia de instrumentação. Rio de Janeiro: ABNT, 1983. •ABNT. Norma NBR9964 - SB88 08: Linhas e símbolos em desenhos de estruturas navais. Rio de Janeiro: ABNT, 1987. • ABNT. Norma NBR14611 - 10: Desenho técnico - representação simplificada em estruturas metálicas. Rio de Janeiro: ABNT, 2000. • PETROBRAS. Norma N-0058: Subsídios gráficos para fluxogramas de processo e de engenharia. Rio de Janeiro: Petrobras, 1999. • _____________. Norma N-0381: Execução de desenhos e outros documentos técnicos em geral. Rio de Janeiro: Petrobras, 1997. • _____________. Norma N-1521: Identificação de equipamentos industriais. Rio de Janeiro: Petrobras, 1998. • _____________. Norma N-1522: Identificação de tubulações industriais. Rio de Janeiro: Petrobras, 1998. • _____________. Norma N-1745: Folha para isométrico de tubulação. Rio de Janeiro: Petrobras, 1999. • SENAI/Departamento Nacional. Módulos industriais - Desenho de tubulações industriais. Rio de Janeiro: SENAI/DN, 1980. • TELES, Pedro C. Silva. Tubulações industriais. Rio de Janeiro: Ao Livro Técnico, 1970.
  • 120.
    SENAI Serviço Nacional de Aprendizagem Industrialdo Rio de Janeiro FIRJAN CIRJ SESI SENAI IEL FIRJAN Federação das Indústrias do Estado do Rio de Janeiro Av. Graça Aranha, 1 Centro – CEP 20030-002 Rio de Janeiro – RJ Tel.: (21) 2563-4526 Central de Atendimento: 0800-231231