Secretaria Municipal Adjunta de 
Fiscalização – SMAFIS
CURSO DE CAPACITAÇÃO DA FISCALIZAÇÃO 
INTEGRADA – CCFI II
2015
  
ÁREA: OBRAS
ASSUNTO: LEITURA DE PROJETOS
 
VISTAS (ou projeções) de uma edificação
Referência na edificação: observador olhando para o edifício
Referência no lote: observador olhando para a rua (convenção mais usada PBH)
SEMPRE VERIFICAR CONTEXTO
 
ESCALA
A necessidade do emprego da escala no desenho veio da necessidade de
representar objetos muito grandes em papeis pequenos. Nesses casos emprega-
se a escala de redução (escala mais utilizada no projeto arquitetônico).
Escalas exigidas para aprovação de projeto na PBH (Portaria SMARU 002/12 –
consulta no site da PBH – Regulação Urbana - Legislação):
- 1:50 para pelo menos 1 corte e fachadas
- 1:50 para plantas baixa;
- 1:100 para demais cortes, cobertura e gradil
- 1:250 para plantas de situação.
 
Um desenho de uma planta baixa de uma residência representado na escala
1:50, significa que em cada 1 cm no papel equivale a 50 cm na medida real ou
0,5 m (medida real da residência). A medida real da residência será cinquenta
vezes maior que sua representação em planta.
Escala 1:50 – 1 cm na planta = 50 cm (0,5m) na medida real
Escala 1:100 – 1 cm na planta = 100 cm (1m) na medida real
 
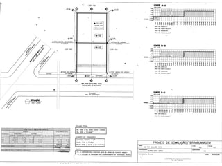
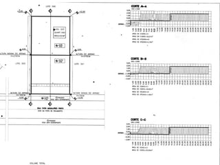
PLANTA DE SITUAÇÃO: representa a implantação da obra no terreno
**Situa o terreno e o empreendimento em seu contexto urbano (indica a
posição do terreno em relação aos terrenos e quadras vizinhas), curvas de nível,
logradouros, etc. Escala mínima 1:250.
 
Nela constam: (Portaria SMARU 002/12)
- Representação do terreno CP (linha tracejada) e do terreno real (em linha 
contínua) - apenas o eixo de divisa sem os muros - com todas dimensões cotadas; 
- Situação de ocupação dos lotes vizinhos (vagos ou construídos, conforme o 
local); 
- Cotas dos afastamentos frontal, laterais e de fundos de todos os pavimentos - 
sempre nas situações de CP e de real;  
 - Representação dos passeios de ambos os lados da via e da pista de rolamento, 
com cotas dos passeios e da pista de rolamento. 
 - Níveis nos vértices do(s) lote(s). Os níveis indicados deverão ser em relação ao 
nível do mar. 
- Quando houver largura final de via, com previsão de recuo do alinhamento, 
representar o alinhamento atual e o projetado e os eixos das vias, devidamente 
cotados. O eixo da via situa-se no ponto médio da distância entre os 
alinhamentos dos lotes.  
 
PLANTA DE COBERTURA
 
INDICAÇÃO DE CAIMENTO DO TELHADO 
Indica, nas plantas de cobertura, o percentual de caimento das telhas. 
 
 
 
PLANTA BAIXA E CORTES:
Representam a compartimentação interna da obra indicando, em especial, a 
localização, inter-relacionamento e pré-dimensionamento de ambientes, 
circulações (verticais e horizontais) e acessos.
PLANTA BAIXA:
Resultado do corte de um plano paralelo ao piso do pavimento que se quer 
representar a uma altura de aproximadamente 1,50 m do mesmo.  
 
Esta altura do plano também pode variar. Alguns adotam 1,20 m, é importante 
que as janelas sejam cortadas. 
Os elementos secionados pelo plano estarão em corte e serão desenhados com
linha contínua e grossa.
Os elementos abaixo do plano estarão em vista e serão desenhados com linha
contínua e fina
Os elementos acima do
plano estarão em
projeção e serão
desenhados com linha
tracejada e fina.
Elementos que estejam
atrás de outros também
deverão ser considerados
em projeção.
As plantas baixas dos diversos níveis da edificação devem estar cotadas e
apresentadas na escala mínima de 1/50.
Nelas constam (Portaria SMARU 002/12):
- Níveis de implantação da edificação e suas variações;
- Legenda de portas e janelas ou indicação de suas dimensões em planta;
- Indicação do uso dos compartimentos e numeração das unidades autônomas;
- Linhas de corte;
- Em rampas: cotas e indicação dos níveis de início e fim, sentido e inclinação;
- Área permeável devidamente cotada e hachurada e indicação de cotas e volume
da caixa de captação, se houver;
- Nos pavimentos de acesso de pedestres, indicação dos níveis do terreno natural
nos pontos em que as extremidades da edificação tocam a divisa e respectivo
nível-médio para terrenos em aclive;
- Nos pavimentos onde houver área de estacionamento, indicação de todas as
vagas, presas ou livres, numeradas e cotadas;
Nos pavimentos de acesso são indicados:
- Projeto do passeio, já atendendo ao Código de Posturas Municipal,
- Largura(s) total(is) do passeio; inclinações longitudinal e transversal do passeio;
indicação da inclinação longitudinal existente da pista de rolamento;
- Indicação e dimensões da faixa livre de pedestres e da faixa de mobiliário
urbano; indicação de todos os postes, placas, suporte fixo de lixo e qualquer
outro mobiliário urbano existente;
- Indicação das espécies de árvores existentes, a serem plantadas, suprimidas ou
transplantadas, quando for o caso. A indicação das árvores no passeio não é alvo
de análise do projeto arquitetônico, porém é condição para a Baixa de
Construção;
- Indicação, com todas as dimensões, dos rebaixos no meio-fio para acesso de
veículos, caso existam;
- Indicação, com todas as dimensões, das áreas vegetadas, caso existam;
- Representação dos degraus, caso existam, com suas dimensões de piso e
espelho.
CORTE
Plano vertical que divide a edificação em duas partes, seja no sentido
longitudinal, seja no sentido transversal.
A função básica de um corte é complementar as informações da planta baixa,
principalmente no que se refere às alturas dos componentes da edificação.
Normalmente os cortes passam por janelas e portas e outros elementos
importantes como, por exemplo, as escadas, elevadores, desníveis e a caixa
d'água.
São apresentados pelo menos dois cortes, um longitudinal e outro transversal.
Pelo menos um deles deve estar na escala de 1/50 (outros podem ser
apresentados na escala 1/100). Neles constam (Portaria SMARU 002/12):
- Perfil natural do terreno em cada corte, exceto em caso de levantamento;
- Pé-direito do(s) pavimento(s) e o(s) nível(eis);
- Altura(s) da edificação (H);
- Nível(eis) de referência e altura(s) máxima(s) na(s) divisa(s), no real e no CP;
- Nível(eis) de referência para o cálculo de H’s;
FACHADAS:
Representam a configuração externa (planos externos) da obra indicando seus
principais elementos, em especial esquadrias.
Deve ser apresentada uma fachada para cada logradouro público lindeiro ao
terreno na escala mínima de 1/50, constando, pelo menos:
- projeção do greide da via e pelo menos uma referência de nível.
REPRESENTAÇÃO DE PORTAS
REPRESENTAÇÃO DE JANELAS
INDICAÇÃO DE CORTE
Indica onde o plano de corte está passando e para que lado o corte foi
desenhado
INDICAÇÃO DE FACHADA
Indica a fachada que foi desenhada. O triângulo deve apontar
perpendicularmente ao plano considerado para se desenhar a vista.
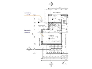
LEGENDA DOS AMBIENTES
Podem informar, para cada ambiente de uma planta baixa ou corte, o nome do
ambiente, área e nível de implantação
NOME E ESCALA DO DESENHO
Organizam os desenhos na prancha identificando-os e indicando a escala usada
REPRESENTAÇÃO DE COTAS
A cota indica a distância entre dois pontos
SELOS PBH
(Portaria SMARU 002/12)
Todos os desenhos devem ter o selo padrão, localizado no canto inferior direito
da prancha, para possibilitar o agrupamento e a fácil localização dos dados
básicos do projeto.
São definidos dois modelos de selo:
I. um completo, para a primeira folha;
II. outro simplificado, para as folhas subsequentes, quando houver.
CARIMBO APROVAÇÃO
Campo 01 - Área reservada para preenchimento da PBH;
Campo 02 - Área reservada para preenchimento da PBH;
Campo 03 - Nome do logradouro (conforme informação
básica do lote); Campo 04 - Código do logradouro
(conforme informação básica do lote); Campo 05 - C.V.
(Classificação Viária): poderá ser - REG para ligação
regional, ART para arterial, COL para coletora e LOC para
local (conforme informação básica do lote); Campo 06 -
L.O.V.P.D (Largura Oficial da Via no Plano Diretor -
conforme informação básica do lote); Campo 07 - L.F.V.
(Largura Final da Via - conforme informação básica caso
haja previsão de alargamento); Campo 08 - P.U.
(Permissividade de uso - conforme informação básica);
Campo 09 - Cadastro da planta CP (conforme
informação básica do lote); Campo 10 - Área do Terreno
(conforme informação básica do lote, mesmo que no
local a área seja diferente); Campo 11 - Setor (conforme
informação básica do lote, quando houver); Campo 12 -
Quadra (conforme informação básica do lote); Campo
13 - Área de Diretriz Especial (ADE), quando houver
(conforme informação
básica do lote); Campo 14 - Zoneamento (conforme
informação básica do lote); Campo 15 – Operação
Urbana, quando houver, e quantas estiverem grafadas
nas Informações Básicas; Campo 16- Áreas de Especial
Interesse Social, quando houver, e conforme grafado nas
Informações Básicas; Campo 17 - Identificação - campo
destinado ao nome do projeto, quando houver
(exemplo: Hospital João XXIII); Campo 18 ao 22 - Bairro,
regional, Lote, zona e quarteirão (conforme informação
básica do lote); Campo 23 - Índice cadastral do IPTU;
Campo 24 - Título do Projeto: Projeto Inicial,
Modificação com Acréscimo, Modificação sem
Acréscimo, Modificação com Decréscimo,
Levantamento, Levantamento do Acréscimo ou
Levantamento com Projeto de Acréscimo; Campo 25 -
Tipo de Uso (residencial, não residencial ou misto);
Campo 26 – Indicar o Grupo ao qual pertence a atividade
pretendida disponível nas tabelas de atividades da lei
do projeto; Campo 29 - Nome e assinatura do proprietário, CPF ou CNPJ (conforme registro de imóveis.
Caso haja vários proprietários, indicar o nome de um deles e outros, outro, outra ou outras - conforme o
caso. A identificação e assinatura dos demais devem estar acima do carimbo, na área de notas na
primeira prancha); Campo 30 - Nome e assinatura do responsável técnico pelo projeto, bem como a
identidade profissional conforme registro no CREA ou no CAU; Campo 31 - Numeração das folhas;
Campo 32 - Nome do arquivo: campo de utilização pessoal; Campo 33 - Tipo do arquivo: no caso da
SMARU será sempre ARQ, referente ao projeto arquitetônico.
O exame do projeto de edificação ocorrerá com base nos documentos
apresentados e levará em conta apenas a análise dos parâmetros que afetam a
paisagem urbana e a qualidade de vida da coletividade.
A aprovação do Projeto de Edificação para emissão do Alvará de Construção
restringe-se apenas ao projeto arquitetônico de edificação. Os projetos
complementares, como projeto hidráulico-sanitário, elétrico, luminotécnico, de
instalações de comunicação, de instalação de ar condicionado, de prevenção e
combate a incêndio, estrutural e de impermeabilização não são apresentados e
nem aprovados pela Prefeitura Municipal de Belo Horizonte- PBH. (art. 14, do
Decreto 13.842/10).
Para conferência de projeto aprovado deve-se observar se nas plantas há
CARIMBO DE APROVAÇÃO ASSINADO E DATADO pelo examinador do projeto
(arquiteto ou engenheiro da SMARU).
FIQUE ATENTO - Para conferência de projeto na obra:
- Localize-se adequadamente nas plantas e cortes em relação ao lote e à
edificação;
- Situe-se observando as circulações verticais;
- Tenha mais atenção às dimensões mínimas indicadas;
- Atente-se às modificações relacionadas principalmente aos parâmetros
urbanísticos:
 Área permeável;
 Acréscimos de área;
 Vagas de estacionamento;
 Afastamentos;
 Alturas na divisa etc
Agradecemos a atenção!
Instrutor: Fernanda
Telefone: 32774927

Leitura de planta versão 4º curso

  • 1.
  • 2.
  • 3.
      VISTAS (ou projeções)de uma edificação Referência na edificação: observador olhando para o edifício Referência no lote: observador olhando para a rua (convenção mais usada PBH) SEMPRE VERIFICAR CONTEXTO
  • 4.
      ESCALA A necessidade doemprego da escala no desenho veio da necessidade de representar objetos muito grandes em papeis pequenos. Nesses casos emprega- se a escala de redução (escala mais utilizada no projeto arquitetônico). Escalas exigidas para aprovação de projeto na PBH (Portaria SMARU 002/12 – consulta no site da PBH – Regulação Urbana - Legislação): - 1:50 para pelo menos 1 corte e fachadas - 1:50 para plantas baixa; - 1:100 para demais cortes, cobertura e gradil - 1:250 para plantas de situação.
  • 5.
      Um desenho deuma planta baixa de uma residência representado na escala 1:50, significa que em cada 1 cm no papel equivale a 50 cm na medida real ou 0,5 m (medida real da residência). A medida real da residência será cinquenta vezes maior que sua representação em planta. Escala 1:50 – 1 cm na planta = 50 cm (0,5m) na medida real Escala 1:100 – 1 cm na planta = 100 cm (1m) na medida real
  • 6.
      PLANTA DE SITUAÇÃO:representa a implantação da obra no terreno **Situa o terreno e o empreendimento em seu contexto urbano (indica a posição do terreno em relação aos terrenos e quadras vizinhas), curvas de nível, logradouros, etc. Escala mínima 1:250.
  • 7.
      Nela constam: (PortariaSMARU 002/12) - Representação do terreno CP (linha tracejada) e do terreno real (em linha  contínua) - apenas o eixo de divisa sem os muros - com todas dimensões cotadas;  - Situação de ocupação dos lotes vizinhos (vagos ou construídos, conforme o  local);  - Cotas dos afastamentos frontal, laterais e de fundos de todos os pavimentos -  sempre nas situações de CP e de real;    - Representação dos passeios de ambos os lados da via e da pista de rolamento,  com cotas dos passeios e da pista de rolamento.   - Níveis nos vértices do(s) lote(s). Os níveis indicados deverão ser em relação ao  nível do mar.  - Quando houver largura final de via, com previsão de recuo do alinhamento,  representar o alinhamento atual e o projetado e os eixos das vias, devidamente  cotados. O eixo da via situa-se no ponto médio da distância entre os  alinhamentos dos lotes.  
  • 8.
  • 9.
  • 11.
  • 13.
    Os elementos secionadospelo plano estarão em corte e serão desenhados com linha contínua e grossa. Os elementos abaixo do plano estarão em vista e serão desenhados com linha contínua e fina Os elementos acima do plano estarão em projeção e serão desenhados com linha tracejada e fina. Elementos que estejam atrás de outros também deverão ser considerados em projeção.
  • 17.
    As plantas baixasdos diversos níveis da edificação devem estar cotadas e apresentadas na escala mínima de 1/50. Nelas constam (Portaria SMARU 002/12): - Níveis de implantação da edificação e suas variações; - Legenda de portas e janelas ou indicação de suas dimensões em planta; - Indicação do uso dos compartimentos e numeração das unidades autônomas; - Linhas de corte; - Em rampas: cotas e indicação dos níveis de início e fim, sentido e inclinação; - Área permeável devidamente cotada e hachurada e indicação de cotas e volume da caixa de captação, se houver; - Nos pavimentos de acesso de pedestres, indicação dos níveis do terreno natural nos pontos em que as extremidades da edificação tocam a divisa e respectivo nível-médio para terrenos em aclive; - Nos pavimentos onde houver área de estacionamento, indicação de todas as vagas, presas ou livres, numeradas e cotadas;
  • 18.
    Nos pavimentos deacesso são indicados: - Projeto do passeio, já atendendo ao Código de Posturas Municipal, - Largura(s) total(is) do passeio; inclinações longitudinal e transversal do passeio; indicação da inclinação longitudinal existente da pista de rolamento; - Indicação e dimensões da faixa livre de pedestres e da faixa de mobiliário urbano; indicação de todos os postes, placas, suporte fixo de lixo e qualquer outro mobiliário urbano existente; - Indicação das espécies de árvores existentes, a serem plantadas, suprimidas ou transplantadas, quando for o caso. A indicação das árvores no passeio não é alvo de análise do projeto arquitetônico, porém é condição para a Baixa de Construção; - Indicação, com todas as dimensões, dos rebaixos no meio-fio para acesso de veículos, caso existam; - Indicação, com todas as dimensões, das áreas vegetadas, caso existam; - Representação dos degraus, caso existam, com suas dimensões de piso e espelho.
  • 19.
    CORTE Plano vertical quedivide a edificação em duas partes, seja no sentido longitudinal, seja no sentido transversal. A função básica de um corte é complementar as informações da planta baixa, principalmente no que se refere às alturas dos componentes da edificação. Normalmente os cortes passam por janelas e portas e outros elementos importantes como, por exemplo, as escadas, elevadores, desníveis e a caixa d'água.
  • 20.
    São apresentados pelomenos dois cortes, um longitudinal e outro transversal. Pelo menos um deles deve estar na escala de 1/50 (outros podem ser apresentados na escala 1/100). Neles constam (Portaria SMARU 002/12): - Perfil natural do terreno em cada corte, exceto em caso de levantamento; - Pé-direito do(s) pavimento(s) e o(s) nível(eis); - Altura(s) da edificação (H); - Nível(eis) de referência e altura(s) máxima(s) na(s) divisa(s), no real e no CP; - Nível(eis) de referência para o cálculo de H’s;
  • 26.
    FACHADAS: Representam a configuraçãoexterna (planos externos) da obra indicando seus principais elementos, em especial esquadrias. Deve ser apresentada uma fachada para cada logradouro público lindeiro ao terreno na escala mínima de 1/50, constando, pelo menos: - projeção do greide da via e pelo menos uma referência de nível.
  • 28.
  • 30.
  • 31.
    INDICAÇÃO DE CORTE Indicaonde o plano de corte está passando e para que lado o corte foi desenhado
  • 32.
    INDICAÇÃO DE FACHADA Indicaa fachada que foi desenhada. O triângulo deve apontar perpendicularmente ao plano considerado para se desenhar a vista.
  • 33.
    LEGENDA DOS AMBIENTES Podeminformar, para cada ambiente de uma planta baixa ou corte, o nome do ambiente, área e nível de implantação
  • 34.
    NOME E ESCALADO DESENHO Organizam os desenhos na prancha identificando-os e indicando a escala usada
  • 35.
    REPRESENTAÇÃO DE COTAS Acota indica a distância entre dois pontos
  • 37.
    SELOS PBH (Portaria SMARU002/12) Todos os desenhos devem ter o selo padrão, localizado no canto inferior direito da prancha, para possibilitar o agrupamento e a fácil localização dos dados básicos do projeto. São definidos dois modelos de selo: I. um completo, para a primeira folha; II. outro simplificado, para as folhas subsequentes, quando houver.
  • 38.
    CARIMBO APROVAÇÃO Campo 01- Área reservada para preenchimento da PBH; Campo 02 - Área reservada para preenchimento da PBH; Campo 03 - Nome do logradouro (conforme informação básica do lote); Campo 04 - Código do logradouro (conforme informação básica do lote); Campo 05 - C.V. (Classificação Viária): poderá ser - REG para ligação regional, ART para arterial, COL para coletora e LOC para local (conforme informação básica do lote); Campo 06 - L.O.V.P.D (Largura Oficial da Via no Plano Diretor - conforme informação básica do lote); Campo 07 - L.F.V. (Largura Final da Via - conforme informação básica caso haja previsão de alargamento); Campo 08 - P.U. (Permissividade de uso - conforme informação básica); Campo 09 - Cadastro da planta CP (conforme informação básica do lote); Campo 10 - Área do Terreno (conforme informação básica do lote, mesmo que no local a área seja diferente); Campo 11 - Setor (conforme informação básica do lote, quando houver); Campo 12 - Quadra (conforme informação básica do lote); Campo 13 - Área de Diretriz Especial (ADE), quando houver (conforme informação
  • 39.
    básica do lote);Campo 14 - Zoneamento (conforme informação básica do lote); Campo 15 – Operação Urbana, quando houver, e quantas estiverem grafadas nas Informações Básicas; Campo 16- Áreas de Especial Interesse Social, quando houver, e conforme grafado nas Informações Básicas; Campo 17 - Identificação - campo destinado ao nome do projeto, quando houver (exemplo: Hospital João XXIII); Campo 18 ao 22 - Bairro, regional, Lote, zona e quarteirão (conforme informação básica do lote); Campo 23 - Índice cadastral do IPTU; Campo 24 - Título do Projeto: Projeto Inicial, Modificação com Acréscimo, Modificação sem Acréscimo, Modificação com Decréscimo, Levantamento, Levantamento do Acréscimo ou Levantamento com Projeto de Acréscimo; Campo 25 - Tipo de Uso (residencial, não residencial ou misto); Campo 26 – Indicar o Grupo ao qual pertence a atividade pretendida disponível nas tabelas de atividades da lei
  • 40.
    do projeto; Campo29 - Nome e assinatura do proprietário, CPF ou CNPJ (conforme registro de imóveis. Caso haja vários proprietários, indicar o nome de um deles e outros, outro, outra ou outras - conforme o caso. A identificação e assinatura dos demais devem estar acima do carimbo, na área de notas na primeira prancha); Campo 30 - Nome e assinatura do responsável técnico pelo projeto, bem como a identidade profissional conforme registro no CREA ou no CAU; Campo 31 - Numeração das folhas; Campo 32 - Nome do arquivo: campo de utilização pessoal; Campo 33 - Tipo do arquivo: no caso da SMARU será sempre ARQ, referente ao projeto arquitetônico. O exame do projeto de edificação ocorrerá com base nos documentos apresentados e levará em conta apenas a análise dos parâmetros que afetam a paisagem urbana e a qualidade de vida da coletividade. A aprovação do Projeto de Edificação para emissão do Alvará de Construção restringe-se apenas ao projeto arquitetônico de edificação. Os projetos complementares, como projeto hidráulico-sanitário, elétrico, luminotécnico, de instalações de comunicação, de instalação de ar condicionado, de prevenção e combate a incêndio, estrutural e de impermeabilização não são apresentados e nem aprovados pela Prefeitura Municipal de Belo Horizonte- PBH. (art. 14, do Decreto 13.842/10).
  • 41.
    Para conferência deprojeto aprovado deve-se observar se nas plantas há CARIMBO DE APROVAÇÃO ASSINADO E DATADO pelo examinador do projeto (arquiteto ou engenheiro da SMARU). FIQUE ATENTO - Para conferência de projeto na obra: - Localize-se adequadamente nas plantas e cortes em relação ao lote e à edificação; - Situe-se observando as circulações verticais; - Tenha mais atenção às dimensões mínimas indicadas; - Atente-se às modificações relacionadas principalmente aos parâmetros urbanísticos:  Área permeável;  Acréscimos de área;  Vagas de estacionamento;  Afastamentos;  Alturas na divisa etc
  • 44.
    Agradecemos a atenção! Instrutor:Fernanda Telefone: 32774927