DESENHO DE ARQUITETURA
• Linguagem para explicar
um projeto.
• De                 forma
universal,              para
profissionais e leigos.
• Normas e convenções existentes.
MATERIAIS DE DESENHO
• Lapiseiras 0.7 e 0.5mm (mina, preferencialmente, do tipo
  HB);
• Borracha branca;
• Escalímetro (nº 01); (TRIDENT)
• Conjunto de esquadros (28); (TRIDENT)
• Transferidor; (pode ser de material mais simples)
• Compasso; (pode ser simples, desde que resistente,
  preferencialmente em metal)
• Fita adesiva;
• Papel fosco;
• Pincel largo para limpeza da prancha (bigode)
• Álcool
• Flanela branca
MATERIAIS DE DESENHO
MATERIAIS DE DESENHO
MATERIAIS DE DESENHO
ESQUADROS


    ESQUADROS                                          90º                          90º




                                        45º                        45º     60º                           30º
• Traçado    de   linhas paralelas,                          P E R P E N D IC U L A R E S

  perpendiculares e demarcação de                                                            M ÓVEL

  ângulos.

                                                                       F IX O




•
                                                                                     PAR ALELAS
     Os      esquadros   devem    ser
                                                                                        M ÓVEL
    preferencialmente sem graduação e
    de material de boa qualidade                       F IX O



    (acrílico).
                                                                                Q U A D R IC U L A D O




                                              F IX O                                         M ÓVEL
ESQUADROS




                        75
                         °
                                            5°
                                       10




                              45
                                  °
                                           5°
                                      13


• Exemplos de
  demarcação de
  ângulos.

                  30°
                                                 150
                                                       °




                             60
                              °
                                            0°
                                      12
NORMAS DA ABNT
NORMAS DA ABNT



NBR 6492/94 – Representação de projetos de arquitetura;
NBR 8196/99 – Emprego de escalas;
NBR 8403/84 – Aplicações de linhas – tipos e larguras;
NBR 10068/87 – Folha de desenho – leiaute e dimensões;
Padronizar as dimensões das folhas e definir seu lay-out com suas
respectivas margens e legenda.
NBR 13142/99 – Dobramento e cópia;
NBR 10647 – DESENHO TÉCNICO – NORMA GERAL - Definir os termos empregados
em desenho técnico;
NBR 10582 – APRESENTAÇÃO DA FOLHA PARA DESENHO TÉCNICO - Distribuição
do espaço da folha de desenho,definindo a área para texto, desenho etc..;
NBR 8402 – EXECUÇÃO DE CARACTERES PARA ESCRITA EM DESENHOS TÉCNICOS;
NBR 5671/77 – Participação profissional nos serviços e obras de engenharia e
arquitetura;
NBR 5679/77 – Elaboração de projetos de obras de engenharia e arquitetura;
NBR 9077/01 – Saídas de emergências em edifícios;
NBR 9050/04 – Acessibilidade para portadores de deficiências;




                                                                        10
NBR 10067 – PRINCÍPIOS GERAIS DE REPRESENTAÇÃO EM DESENHO
TÉCNICO;
NBR 12298– REPRESENTAÇÃO DE ÁREA DE CORTE POR MEIO DE HACHURAS
EM DESENHO TÉCNICO;

NBR 10126– COTAGEM EM DESENHO TÉCNICO;

NBR 6409– NORMALIZA A EXECUÇÃO DOS DESENHOS DE ELETRÔNICA;
NBR 7191– OBRAS DE CONCRETO SIMPLES OU ARMADO.




                                                                 11
NORMAS DA ABNT
DESENHOS UTILIZADOS NA REPRESENTAÇÃO
DOS    PROJETOS   ARQUITETÔNICOS  DE
EDIFICAÇÕES



  Planta de situação;
  Planta de locação e coberta;
  Planta baixa;
  Cortes longitudinais e transversais;
  Fachadas;
  Desenhos de detalhes.


                                          13
PLANTA DE SITUAÇÃO
PLANTA DE LOCAÇÃO E COBERTA
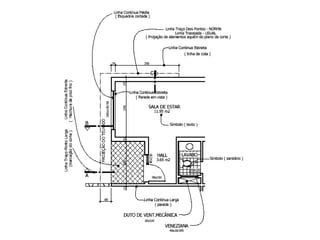
PLANTA BAIXA

    Plantas baixas são cortes em cada pavimento através de planos
     horizontais imaginários situados em um altura entre a verga da porta
     e o peitoril da janela de altura que varia entre 1,20m, 1,50m,
     1,80m);
    A planta baixa deve conter:

• Demarcação das paredes;
• Projeção dos beirais;
• Posição e dimensões das esquadrias;
• Representação das louças sanitárias;
• Representação dos quadriculados representativos
  de “pisos frios”;
• Representação dos textos e cotas;
PLANTA BAIXA
PLANTA BAIXA
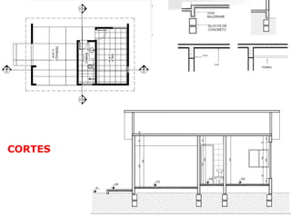
CORTES
CORTES
CORTES
CORTES




         22
FACHADAS




       23
FACHADAS




       24
FACHADAS




           25
FACHADAS




           26
FACHADAS




           27
TIPOS E ESPESSURA DE LINHA EMPREGADOS
  estreita, média, larga, tracejada, traço-dois pontos, ...


• Transmitem informações sobre os elementos que estão
  representando;

  Linhas largas: elementos estruturais ou de alvenaria cortados
  pelo plano de corte;

  Linhas médias: elementos leves cortados      pelo plano de
  corte;

  Linhas estreitas: arestas e contornos aparentes, não cortados
  pelo plano de corte;
COTAGEM E REFERENCIAS DE NÍVEL
COTAGEM DE ESQUADRIAS
ESCALAS
O escalímetro é um instrumento de desenho técnico utilizado para desenhar
objetos em escala ou facilitar a leitura das medidas de desenhos
representados em escala. Podem ser planos ou triangulares, como o
apresentado na figura.




O escalímetro, escala ou régua triangular, é dividido em três faces, cada qual
com duas escalas distintas. Pode-se, nesse caso, através da utilização de
múltiplos ou submúltiplos dessas seis escalas, extrair um grande número de
outras escalas.
O escalímetro convencional utilizado na engenharia e na arquitetura é
aquele que possui as seguintes escalas 1:20; 1:25; 1:50; 1:75; 1:100; 1:125.
Cada unidade marcada nas escalas do escalímetro correspondem a um
metro. Isto significa que aquela dada medida corresponde ao tamanho de
um metro na escala adotada.
ESCALAS UTILIZADAS NA ARQUITETURA


As escalas de redução recomendadas
pela NBR 6492 para a representação
de projetos de arquitetura são:

1:2; 1:5; 1:10; 1:20; 1:25; 1:50; 1:75;
1:100; 1:200; 1:250; 1:500.
ESCALAS USUALMENTE ADOTADAS
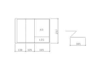
FOLHAS PARA REPRESENTAÇÃO DE DESENHOS
            DE ARQUITETURA

    Dimensões
       As normas em vigor, editadas pela ABNT adotam a seqüência “A”
      de folhas, partindo da folha A0 com área de aproximadamente
      1,0m2.

   Dimensões das folhas:
   Folha Largura (mm) Altura (mm)
      A0 841X1189
      A1 594X841
      A2 420X594
      A3 297X420
      A4 210X297
FOLHAS PARA REPRESENTAÇÃO DE
  DESENHOS DE ARQUITETURA
Configuração da folha
Carimbo, Selo ou legenda


   A legenda de um desenho técnico deve conter, no mínimo, as seguintes
   informações:
• Designação e emblema da empresa que está elaborando o projeto ou a obra;
• Nome do responsável técnico pelo conteúdo do desenho, com sua
   identificação (inscrição no órgão de classe) e local para assinatura;
• Local e data;
• Nome ou conteúdo do projeto;
• Conteúdo da prancha (quais desenhos estão presentes na prancha);
• Escala(s) adotada(s) no desenho e unidade;
• Número da prancha;
Carimbo, Selo ou
    legenda
Numeração das pranchas


Junto com o número da prancha usualmente se informa o total de
pranchas do projeto – ex.: 2/9 significa: prancha 2 de um total de 9
pranchas.


Usualmente inicia-se a numeração pela prancha que contém a planta
de situação e a de localização. Esta seria a prancha 1/x (onde “x” é o
número total de pranchas do projeto em questão).


A(s) prancha(s) seguinte(s) será(ao) a(s) que contém a(s) planta(s)
baixa(s). Se houver mais de uma planta baixa, a numeração mais
baixa corresponderá a prancha que contém as plantas dos
pavimentos mais baixos. Após as plantas baixas são numeradas as
pranchas que contém
o(s) corte(s) e, por último, a(s) fachada(s).
GLOSSÁRIO

Aula 1 introduçao ao des arquit 2012 2

  • 1.
    DESENHO DE ARQUITETURA •Linguagem para explicar um projeto. • De forma universal, para profissionais e leigos. • Normas e convenções existentes.
  • 2.
    MATERIAIS DE DESENHO •Lapiseiras 0.7 e 0.5mm (mina, preferencialmente, do tipo HB); • Borracha branca; • Escalímetro (nº 01); (TRIDENT) • Conjunto de esquadros (28); (TRIDENT) • Transferidor; (pode ser de material mais simples) • Compasso; (pode ser simples, desde que resistente, preferencialmente em metal) • Fita adesiva; • Papel fosco; • Pincel largo para limpeza da prancha (bigode) • Álcool • Flanela branca
  • 3.
  • 4.
  • 5.
  • 6.
    ESQUADROS ESQUADROS 90º 90º 45º 45º 60º 30º • Traçado de linhas paralelas, P E R P E N D IC U L A R E S perpendiculares e demarcação de M ÓVEL ângulos. F IX O • PAR ALELAS Os esquadros devem ser M ÓVEL preferencialmente sem graduação e de material de boa qualidade F IX O (acrílico). Q U A D R IC U L A D O F IX O M ÓVEL
  • 7.
    ESQUADROS 75 ° 5° 10 45 ° 5° 13 • Exemplos de demarcação de ângulos. 30° 150 ° 60 ° 0° 12
  • 8.
  • 9.
    NORMAS DA ABNT NBR6492/94 – Representação de projetos de arquitetura; NBR 8196/99 – Emprego de escalas; NBR 8403/84 – Aplicações de linhas – tipos e larguras; NBR 10068/87 – Folha de desenho – leiaute e dimensões; Padronizar as dimensões das folhas e definir seu lay-out com suas respectivas margens e legenda. NBR 13142/99 – Dobramento e cópia;
  • 10.
    NBR 10647 –DESENHO TÉCNICO – NORMA GERAL - Definir os termos empregados em desenho técnico; NBR 10582 – APRESENTAÇÃO DA FOLHA PARA DESENHO TÉCNICO - Distribuição do espaço da folha de desenho,definindo a área para texto, desenho etc..; NBR 8402 – EXECUÇÃO DE CARACTERES PARA ESCRITA EM DESENHOS TÉCNICOS; NBR 5671/77 – Participação profissional nos serviços e obras de engenharia e arquitetura; NBR 5679/77 – Elaboração de projetos de obras de engenharia e arquitetura; NBR 9077/01 – Saídas de emergências em edifícios; NBR 9050/04 – Acessibilidade para portadores de deficiências; 10
  • 11.
    NBR 10067 –PRINCÍPIOS GERAIS DE REPRESENTAÇÃO EM DESENHO TÉCNICO; NBR 12298– REPRESENTAÇÃO DE ÁREA DE CORTE POR MEIO DE HACHURAS EM DESENHO TÉCNICO; NBR 10126– COTAGEM EM DESENHO TÉCNICO; NBR 6409– NORMALIZA A EXECUÇÃO DOS DESENHOS DE ELETRÔNICA; NBR 7191– OBRAS DE CONCRETO SIMPLES OU ARMADO. 11
  • 12.
  • 13.
    DESENHOS UTILIZADOS NAREPRESENTAÇÃO DOS PROJETOS ARQUITETÔNICOS DE EDIFICAÇÕES Planta de situação; Planta de locação e coberta; Planta baixa; Cortes longitudinais e transversais; Fachadas; Desenhos de detalhes. 13
  • 14.
  • 15.
  • 16.
    PLANTA BAIXA Plantas baixas são cortes em cada pavimento através de planos horizontais imaginários situados em um altura entre a verga da porta e o peitoril da janela de altura que varia entre 1,20m, 1,50m, 1,80m); A planta baixa deve conter: • Demarcação das paredes; • Projeção dos beirais; • Posição e dimensões das esquadrias; • Representação das louças sanitárias; • Representação dos quadriculados representativos de “pisos frios”; • Representação dos textos e cotas;
  • 17.
  • 18.
  • 19.
  • 20.
  • 21.
  • 22.
  • 23.
  • 24.
  • 25.
  • 26.
  • 27.
  • 28.
    TIPOS E ESPESSURADE LINHA EMPREGADOS estreita, média, larga, tracejada, traço-dois pontos, ... • Transmitem informações sobre os elementos que estão representando; Linhas largas: elementos estruturais ou de alvenaria cortados pelo plano de corte; Linhas médias: elementos leves cortados pelo plano de corte; Linhas estreitas: arestas e contornos aparentes, não cortados pelo plano de corte;
  • 33.
  • 34.
  • 36.
    ESCALAS O escalímetro éum instrumento de desenho técnico utilizado para desenhar objetos em escala ou facilitar a leitura das medidas de desenhos representados em escala. Podem ser planos ou triangulares, como o apresentado na figura. O escalímetro, escala ou régua triangular, é dividido em três faces, cada qual com duas escalas distintas. Pode-se, nesse caso, através da utilização de múltiplos ou submúltiplos dessas seis escalas, extrair um grande número de outras escalas. O escalímetro convencional utilizado na engenharia e na arquitetura é aquele que possui as seguintes escalas 1:20; 1:25; 1:50; 1:75; 1:100; 1:125. Cada unidade marcada nas escalas do escalímetro correspondem a um metro. Isto significa que aquela dada medida corresponde ao tamanho de um metro na escala adotada.
  • 37.
    ESCALAS UTILIZADAS NAARQUITETURA As escalas de redução recomendadas pela NBR 6492 para a representação de projetos de arquitetura são: 1:2; 1:5; 1:10; 1:20; 1:25; 1:50; 1:75; 1:100; 1:200; 1:250; 1:500.
  • 38.
  • 40.
    FOLHAS PARA REPRESENTAÇÃODE DESENHOS DE ARQUITETURA Dimensões As normas em vigor, editadas pela ABNT adotam a seqüência “A” de folhas, partindo da folha A0 com área de aproximadamente 1,0m2. Dimensões das folhas: Folha Largura (mm) Altura (mm) A0 841X1189 A1 594X841 A2 420X594 A3 297X420 A4 210X297
  • 41.
    FOLHAS PARA REPRESENTAÇÃODE DESENHOS DE ARQUITETURA
  • 46.
  • 47.
    Carimbo, Selo oulegenda A legenda de um desenho técnico deve conter, no mínimo, as seguintes informações: • Designação e emblema da empresa que está elaborando o projeto ou a obra; • Nome do responsável técnico pelo conteúdo do desenho, com sua identificação (inscrição no órgão de classe) e local para assinatura; • Local e data; • Nome ou conteúdo do projeto; • Conteúdo da prancha (quais desenhos estão presentes na prancha); • Escala(s) adotada(s) no desenho e unidade; • Número da prancha;
  • 48.
  • 49.
    Numeração das pranchas Juntocom o número da prancha usualmente se informa o total de pranchas do projeto – ex.: 2/9 significa: prancha 2 de um total de 9 pranchas. Usualmente inicia-se a numeração pela prancha que contém a planta de situação e a de localização. Esta seria a prancha 1/x (onde “x” é o número total de pranchas do projeto em questão). A(s) prancha(s) seguinte(s) será(ao) a(s) que contém a(s) planta(s) baixa(s). Se houver mais de uma planta baixa, a numeração mais baixa corresponderá a prancha que contém as plantas dos pavimentos mais baixos. Após as plantas baixas são numeradas as pranchas que contém o(s) corte(s) e, por último, a(s) fachada(s).
  • 50.