DESENHO
TÉCNICO
 Prof: André Veiga
 aveiga@area1.edu.br
DESENHO TÉCNICO



   PLANO DE
    ENSINO
                  Prof: André Veiga
DESENHO TÉCNICO

OBJETIVOS

 Utilizar os padrões para um Desenho Técnico seguindo as normas da

           PLANO DE
ABNT nos trabalho desenvolvidos em Sala de aula.

 Implementar soluções para as atividades propostas seguindo as técnicas
de desenho , desenvolvidos na prancheta.


            ENSINO
 Solucionar as situações Gráficas apresentadas com qualidade, rapidez e
precisão utilizando o Softwares 2D e 3D.




                                                       Prof: André Veiga
DESENHO TÉCNICO
EMENTA

Na Disciplina Desenho Técnico, o aluno irá conhecer as Normas Técnicas


           PLANO DE
definidas pela ABNT, que padronizam a linguagem utilizada na indústria, e
as técnicas de representação para um desenho executivo, como a
perspectiva, a Geometria Descritiva e as Vistas Ortográficas. O aluno
utilizará esse conteúdo em atividades teóricas e práticas, podendo assim,


            ENSINO
obter resultados satisfatórios na leitura e desenvolvimento de um Desenho
Técnico. Além disso, o aluno terá contato com o Software CAD, ferramenta
de uso universal no desenvolvimento do Desenho técnico no âmbito
profissional.



                                                        Prof: André Veiga
DESENHO TÉCNICO

CONTEÚDO PROGRAMÁTICO

NORMAS TÉCNICAS

           PLANO DE
Formatos e Padrões de Pranchas.
Dobragem das Pranchas.
Traçado – Tipo de linhas e símbolos.

            ENSINO
Legenda (Carimbo).
Técnicas de Cotagem – Definições e regras de Cotagem.
Escala – Definições, tipos e aplicações.




                                                        Prof: André Veiga
DESENHO TÉCNICO
CONTEÚDO PROGRAMÁTICO
GEOMETRIA DESCRITIVA
Sistema de Projeção – Método de Monge

- Diedros.
- Épura.  PLANO DE
Estudo do Ponto


- Cota e Afastamento.
- Posições de um Ponto.

           ENSINO
Estudo da Reta.
- Pertinência de Ponto e Reta.
- Posições da Reta.
- Retas segundo o paralelismo em relação aos Planos de Projeção.
- Retas segundo o perpendicularismo em relação aos Planos de Projeção.
- Traço da Reta.

                                                      Prof: André Veiga
DESENHO TÉCNICO

CONTEÚDO PROGRAMÁTICO

GEOMETRIA DESCRITIVA

            PLANO DE
Estudo do Plano
- Traços do Plano.
- Posições de um Plano.


             ENSINO
- Pertinência de Reta e Plano.
-Retas do Plano.


Poliedros
- Representação de poliedros retos apoiados em Planos regulares


                                                      Prof: André Veiga
DESENHO TÉCNICO
CONTEÚDO PROGRAMÁTICO

DESENHO EM PROJEÇÃO ORTOGONAL COMUM NO 1º DIEDRO.

Escolha das vistas.
- Vista principal.
- Vistas Laterais.

Aplicação de Linhas.
- Arestas visíveis.
- Arestas ocultas.
- Linhas de centro e eixo.


                                      Prof: André Veiga
DESENHO TÉCNICO

CONTEÚDO PROGRAMÁTICO

DESENHO EM PERSPECTIVA PARALELA

Representação Cavaleira.

Representação Isométrica.
- Desenhos simples.
- Desenhos contendo planos inclinados.
- Desenhos contendo curvas.




                                         Prof: André Veiga
DESENHO TÉCNICO
AVALIAÇÃO

Prova teórica/ prática envolvendo os conhecimentos das normas da ABNT,
resolvendo problemas da Geometria Descritiva, Vistas ortográficas e
perspectivas.


Prova prática no laboratório de informática utilizando a ferramenta CAD,
para assim, poder avaliar não somente o aprendizado do software, mas
também o ganho de qualidade na utilização da nova ferramenta no
Desenho Técnico.




                                                        Prof: André Veiga
DESENHO TÉCNICO
REFERÊNCIAS BÁSICAS:

Bibliografia Básica

PRÍNCIPE Jr. Noções de geometria descritiva. V. I e II. São Paulo : Nobel,
2004. 311 p. ISBN: 8521301634.

MONTENEGRO, Gildo. Desenho Arquitetônico. São Paulo : Edgard Blücher,
1978.

SILVA, Gilberto Soares da. Curso de desenho técnico. Porto Alegre : Sagra,
1993.

OMURA, George Introdução ao AutoCAD 2008. Rio de Janeiro/ 2008: Atlas
Books.


                                                         Prof: André Veiga
DESENHO TÉCNICO
INSTRUMENTOS DE DESENHO

Escalímetro nº 1
Esquadros técnicos nº 32 ou maior
Lapiseira 0,5
Borracha branca
Fita adesiva
Bloco de Papel sulfite A3 com margem (Canson)
Compasso técnico
Transferidor

                                      Prof: André Veiga
DESENHO TÉCNICO



  DEFINIÇÃO
      &
REPRSENTAÇÕES
                  Prof: André Veiga
DESENHO TÉCNICO




                  Prof: André Veiga
DESENHO TÉCNICO




                  Prof: André Veiga
DESENHO TÉCNICO




                  Prof: André Veiga
DESENHO TÉCNICO




                  Prof: André Veiga
DESENHO TÉCNICO




                  Prof: André Veiga
DESENHO TÉCNICO




                  Prof: André Veiga
DESENHO TÉCNICO




                  Prof: André Veiga
DESENHO TÉCNICO




                  Prof: André Veiga
DESENHO TÉCNICO




                  Prof: André Veiga
DESENHO TÉCNICO




                  Prof: André Veiga
DESENHO TÉCNICO




                  Prof: André Veiga
DESENHO TÉCNICO




                  Prof: André Veiga
DESENHO TÉCNICO




                  Prof: André Veiga
DESENHO TÉCNICO




                  Prof: André Veiga
DESENHO TÉCNICO




                  Prof: André Veiga
DESENHO TÉCNICO




                  Prof: André Veiga
Prof: André Veiga
Prof: André Veiga
Prof: André Veiga
Prof: André Veiga
Prof: André Veiga
Prof: André Veiga
Prof: André Veiga
DESENHO TÉCNICO




     NORMAS
    TÉCNICAS

                  Prof: André Veiga
DESENHO TÉCNICO

NORMAS TÉCNICAS
Para que se possa executar um desenho técnico
dentro dos padrões internacionais, criaram-se
normas registradas como Normas Brasileiras –
NBR – pelo Instituto de Metrologia, Normatização
e Qualidade Industrial – INMETRO.



                                    Prof: André Veiga
DESENHO TÉCNICO



 FOLHA DE DESENHO
LAYOUT E DIMENSÕES
NBR 10068 / OUT / 1987


                  Prof: André Veiga
DESENHO TÉCNICO
     FOLHA DE DESNHO – LAYOUT E DIMENSÕES
             NBR 10068 / OUT / 1987
Padroniza as características dimensionais das folhas em
branco e pré-impressas a serem aplicadas em todos os
desenhos técnicos.
Esta norma apresenta também o leiaute da folha do
desenho técnico definindo:
* Posição e dimensão do carimbo;
* Margem e quadro;
* Marcas de corte / dobra.

                                         Prof: André Veiga
DESENHO TÉCNICO
 FOLHA DE DESNHO – LAYOUT E DIMENSÕES
         NBR 10068 / OUT / 1987
          Formatos da série “A”

   Designação           Dimensões (mm)

     A0                    841 x 1189
     A1                    594 x 841
     A2                    420 x 594
     A3                    297 x 420
     A4                    210 x 420


                                  Prof: André Veiga
DESENHO TÉCNICO
 FOLHA DE DESNHO – LAYOUT E DIMENSÕES
         NBR 10068 / OUT / 1987




                              Prof: André Veiga
DESENHO TÉCNICO
 FOLHA DE DESNHO – LAYOUT E DIMENSÕES
         NBR 10068 / OUT / 1987




                              Prof: André Veiga
DESENHO TÉCNICO



CONTEÚDO DA FOLHA
  PARA DESENHO
      TÉCNICO
  10.582 - DEZ/1998
                  Prof: André Veiga
DESENHO TÉCNICO
CONTEÚDO DA FOLHA PARA DESENHO TÉCNICO
         NBR 10.582 / DEZ/1988
Esta Norma fixa as condições exigíveis para a localização,
disposição e conteúdo do espaço para desenho, espaço para
texto e espaço para legenda.

A folha para o desenho deve conter:

* espaço para Desenho;
* espaço para Texto (Legenda);
* espaço para Carimbo.




                                              Prof: André Veiga
DESENHO TÉCNICO

                                            ESPAÇO PARA
      ESPAÇO PARA             ESPAÇO PARA   TEXTO (LEGENDA)
      DESENHO                 DESENHO




ESPAÇO PARA
TEXTO (LEGENDA)     CARIMBO                          CARIMBO




                                              Prof: André Veiga
DESENHO TÉCNICO




                  Prof: André Veiga
DESENHO TÉCNICO


PREPARANDO A
   ÁREA DE
  TRABALHO
                  Prof: André Veiga
PREPARANDO A SUPERFÍCIE
         DE TRABALHO
FIXAÇÃO DO PAPEL (FORMATO A3) NA MESA DE TRABALHO
                         B
                             Alinha o folha de papel
                             manteiga utilizando a
                             régua paralela.

                  RÉGUA PARALELA

                             Fixa um pedaço de fita
                             adesiva em A e outro em
                             B, e tenciona nas
  A                          direções indicadas

                                          Prof. André Veiga
PREPARANDO A SUPERFÍCIE
           DE TRABALHO
FIXAÇÃO DO PAPEL (FORMATO A3) NA MESA DE TRABALHO

 C                             B
                                   Faz-se o mesmo
                                   procedimento,
                                   agora em C e D.



     A                     D


                                             Prof. André Veiga
PRANCHA – CARIMBO



     ÁREA PARA DESENHO



                   175 mm


   LEGENDA        CARIMBO           50 mm



                            Prof. André Veiga
PRANCHA – DOBRANGEM




  105 m m   185 m m




                      Prof. André Veiga
Prof. André Veiga
DESENHO TÉCNICO




                  Prof: André Veiga
DESENHO TÉCNICO




                  Prof: André Veiga
DESENHO TÉCNICO




                  Prof: André Veiga
DESENHO TÉCNICO




                  Prof: André Veiga
DESENHO TÉCNICO




                  Prof: André Veiga
DESENHO TÉCNICO




                  Prof: André Veiga
DESENHO TÉCNICO



                   PAUTA SUPERIOR




  PAUTA INFERIOR




                         Prof: André Veiga
DESENHO TÉCNICO



EMPREGO DE ESCALAS
EM DESENHO TÉCNICO
 NBR 8196 / OUT/1983


                  Prof: André Veiga
DESENHO TÉCNICO
  EMPREGO DE ESCALAS EM DESENHO TÉCNICO
           NBR 8196 / OUT/1983

DEFINIÇÃO

É a relação da dimensão linear de um elemento
e/ou de um objeto representado no desenho
original para a dimensão real do mesmo elemento
e/ou do próprio objeto.



                                     Prof: André Veiga
DESENHO TÉCNICO
   EMPREGO DE ESCALAS EM DESENHO TÉCNICO
            NBR 8196 / OUT/1983

2.2 – Escala Natural – Escala com a relação 1:1.


2.3 – Escala de Redução – Escala onde a relação é menor
do que 1:1; é tanto menor quanto diminui sua relação de
decremento.

2.3 – Escala de ampliação – Escala onde a relação é mais
que 1:1; é tanto maior quanto aumenta sua relação de
incremento

                                              Prof: André Veiga
DESENHO TÉCNICO
EMPREGO DE ESCALAS EM DESENHO TÉCNICO
         NBR 8196 / OUT/1983
As escalas recomendadas para uso em desenho técnico
são especificadas na tabela.
   Categoria             Escalas recomendadas

   Escala de ampliação   50:1    20:1     10:1
                         5:1      2:1

   Escala natural        1:1

   Escala de redução     1:2      1:5    1:10
                         1:20     1:50   1:100
                         1:200   1:500   1:1000


                                         Prof: André Veiga
DESENHO TÉCNICO
   EMPREGO DE ESCALAS EM DESENHO TÉCNICO
            NBR 8196 / OUT/1983
ESCALÍMETRO – Ferramenta utilizada para ampliar ou reduzir
um Desenho Técnico.




                                            Prof: André Veiga
DESENHO TÉCNICO


   COTAGEM EM
 DESENHO TÉCNICO
NBR10.126 – NOV/1987


                  Prof: André Veiga
DESENHO TÉCNICO


A indicação de medidas no desenho técnico
recebe o nome de cotagem. Ao indicar as
medidas ou cotas, no desenho técnico, deve-se
seguir determinadas normas técnicas. A
cotagem é normalizada pela norma
ABNT/NBR 10126/1987.



                                 Prof: André Veiga
DESENHO TÉCNICO

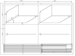
ELEMENTOS DA COTAGEM

- Linha de cota = são finas, continuas
com setas ou traços nas extremidades;
- Linha de extensão = É uma linha fina,
continua, que limita as linhas de cota;
- Cota = São os números que indicam as
medidas da peça e de seus detalhes;

                               Prof: André Veiga
DESENHO TÉCNICO




                  Prof: André Veiga
DESENHO TÉCNICO

                  OBSERVAÇÕES
A distancia entre a Linha de Cota e a Linha do Desenho
deverá ser de 7mm;
A Linha de Extensão deverá ultrapassar a Linha de Conta
em 3mm;
A Linha de Extensão não deve tocar no Desenho;
As setas que findam a Linha de Cota deverão,
obrigatoriamente, tocar na Linha de Extensão, tendo um
comprimento de 3mm;


                                          Prof: André Veiga
DESENHO TÉCNICO

                   OBSERVAÇÕES
O texto da Cota deverá ter uma altura de 3mm, igual
ao comprimento da seta da Linha de Cota;
Não se coloca o símbolo da unidade ( com exceção de
Polegada e Grau);
As cotas devem ser colocadas de maneira que o desenho
seja lido da esquerda para a direita e de baixo para cima;
As cotas devem ser indicadas nas Vistas Ortográficas;
Deve-se evitar cotar elementos representados por linhas
tracejados.

                                           Prof: André Veiga

Desenho técnico (2010.ii)

  • 1.
    DESENHO TÉCNICO Prof: AndréVeiga aveiga@area1.edu.br
  • 2.
    DESENHO TÉCNICO PLANO DE ENSINO Prof: André Veiga
  • 3.
    DESENHO TÉCNICO OBJETIVOS  Utilizaros padrões para um Desenho Técnico seguindo as normas da PLANO DE ABNT nos trabalho desenvolvidos em Sala de aula.  Implementar soluções para as atividades propostas seguindo as técnicas de desenho , desenvolvidos na prancheta. ENSINO  Solucionar as situações Gráficas apresentadas com qualidade, rapidez e precisão utilizando o Softwares 2D e 3D. Prof: André Veiga
  • 4.
    DESENHO TÉCNICO EMENTA Na DisciplinaDesenho Técnico, o aluno irá conhecer as Normas Técnicas PLANO DE definidas pela ABNT, que padronizam a linguagem utilizada na indústria, e as técnicas de representação para um desenho executivo, como a perspectiva, a Geometria Descritiva e as Vistas Ortográficas. O aluno utilizará esse conteúdo em atividades teóricas e práticas, podendo assim, ENSINO obter resultados satisfatórios na leitura e desenvolvimento de um Desenho Técnico. Além disso, o aluno terá contato com o Software CAD, ferramenta de uso universal no desenvolvimento do Desenho técnico no âmbito profissional. Prof: André Veiga
  • 5.
    DESENHO TÉCNICO CONTEÚDO PROGRAMÁTICO NORMASTÉCNICAS PLANO DE Formatos e Padrões de Pranchas. Dobragem das Pranchas. Traçado – Tipo de linhas e símbolos. ENSINO Legenda (Carimbo). Técnicas de Cotagem – Definições e regras de Cotagem. Escala – Definições, tipos e aplicações. Prof: André Veiga
  • 6.
    DESENHO TÉCNICO CONTEÚDO PROGRAMÁTICO GEOMETRIADESCRITIVA Sistema de Projeção – Método de Monge - Diedros. - Épura. PLANO DE Estudo do Ponto - Cota e Afastamento. - Posições de um Ponto. ENSINO Estudo da Reta. - Pertinência de Ponto e Reta. - Posições da Reta. - Retas segundo o paralelismo em relação aos Planos de Projeção. - Retas segundo o perpendicularismo em relação aos Planos de Projeção. - Traço da Reta. Prof: André Veiga
  • 7.
    DESENHO TÉCNICO CONTEÚDO PROGRAMÁTICO GEOMETRIADESCRITIVA PLANO DE Estudo do Plano - Traços do Plano. - Posições de um Plano. ENSINO - Pertinência de Reta e Plano. -Retas do Plano. Poliedros - Representação de poliedros retos apoiados em Planos regulares Prof: André Veiga
  • 8.
    DESENHO TÉCNICO CONTEÚDO PROGRAMÁTICO DESENHOEM PROJEÇÃO ORTOGONAL COMUM NO 1º DIEDRO. Escolha das vistas. - Vista principal. - Vistas Laterais. Aplicação de Linhas. - Arestas visíveis. - Arestas ocultas. - Linhas de centro e eixo. Prof: André Veiga
  • 9.
    DESENHO TÉCNICO CONTEÚDO PROGRAMÁTICO DESENHOEM PERSPECTIVA PARALELA Representação Cavaleira. Representação Isométrica. - Desenhos simples. - Desenhos contendo planos inclinados. - Desenhos contendo curvas. Prof: André Veiga
  • 10.
    DESENHO TÉCNICO AVALIAÇÃO Prova teórica/prática envolvendo os conhecimentos das normas da ABNT, resolvendo problemas da Geometria Descritiva, Vistas ortográficas e perspectivas. Prova prática no laboratório de informática utilizando a ferramenta CAD, para assim, poder avaliar não somente o aprendizado do software, mas também o ganho de qualidade na utilização da nova ferramenta no Desenho Técnico. Prof: André Veiga
  • 11.
    DESENHO TÉCNICO REFERÊNCIAS BÁSICAS: BibliografiaBásica PRÍNCIPE Jr. Noções de geometria descritiva. V. I e II. São Paulo : Nobel, 2004. 311 p. ISBN: 8521301634. MONTENEGRO, Gildo. Desenho Arquitetônico. São Paulo : Edgard Blücher, 1978. SILVA, Gilberto Soares da. Curso de desenho técnico. Porto Alegre : Sagra, 1993. OMURA, George Introdução ao AutoCAD 2008. Rio de Janeiro/ 2008: Atlas Books. Prof: André Veiga
  • 12.
    DESENHO TÉCNICO INSTRUMENTOS DEDESENHO Escalímetro nº 1 Esquadros técnicos nº 32 ou maior Lapiseira 0,5 Borracha branca Fita adesiva Bloco de Papel sulfite A3 com margem (Canson) Compasso técnico Transferidor Prof: André Veiga
  • 13.
    DESENHO TÉCNICO DEFINIÇÃO & REPRSENTAÇÕES Prof: André Veiga
  • 14.
    DESENHO TÉCNICO Prof: André Veiga
  • 15.
    DESENHO TÉCNICO Prof: André Veiga
  • 16.
    DESENHO TÉCNICO Prof: André Veiga
  • 17.
    DESENHO TÉCNICO Prof: André Veiga
  • 18.
    DESENHO TÉCNICO Prof: André Veiga
  • 19.
    DESENHO TÉCNICO Prof: André Veiga
  • 20.
    DESENHO TÉCNICO Prof: André Veiga
  • 21.
    DESENHO TÉCNICO Prof: André Veiga
  • 22.
    DESENHO TÉCNICO Prof: André Veiga
  • 23.
    DESENHO TÉCNICO Prof: André Veiga
  • 24.
    DESENHO TÉCNICO Prof: André Veiga
  • 25.
    DESENHO TÉCNICO Prof: André Veiga
  • 26.
    DESENHO TÉCNICO Prof: André Veiga
  • 27.
    DESENHO TÉCNICO Prof: André Veiga
  • 28.
    DESENHO TÉCNICO Prof: André Veiga
  • 30.
    DESENHO TÉCNICO Prof: André Veiga
  • 31.
  • 32.
  • 33.
  • 34.
  • 35.
  • 36.
  • 37.
  • 38.
    DESENHO TÉCNICO NORMAS TÉCNICAS Prof: André Veiga
  • 39.
    DESENHO TÉCNICO NORMAS TÉCNICAS Paraque se possa executar um desenho técnico dentro dos padrões internacionais, criaram-se normas registradas como Normas Brasileiras – NBR – pelo Instituto de Metrologia, Normatização e Qualidade Industrial – INMETRO. Prof: André Veiga
  • 40.
    DESENHO TÉCNICO FOLHADE DESENHO LAYOUT E DIMENSÕES NBR 10068 / OUT / 1987 Prof: André Veiga
  • 41.
    DESENHO TÉCNICO FOLHA DE DESNHO – LAYOUT E DIMENSÕES NBR 10068 / OUT / 1987 Padroniza as características dimensionais das folhas em branco e pré-impressas a serem aplicadas em todos os desenhos técnicos. Esta norma apresenta também o leiaute da folha do desenho técnico definindo: * Posição e dimensão do carimbo; * Margem e quadro; * Marcas de corte / dobra. Prof: André Veiga
  • 42.
    DESENHO TÉCNICO FOLHADE DESNHO – LAYOUT E DIMENSÕES NBR 10068 / OUT / 1987 Formatos da série “A” Designação Dimensões (mm) A0 841 x 1189 A1 594 x 841 A2 420 x 594 A3 297 x 420 A4 210 x 420 Prof: André Veiga
  • 43.
    DESENHO TÉCNICO FOLHADE DESNHO – LAYOUT E DIMENSÕES NBR 10068 / OUT / 1987 Prof: André Veiga
  • 44.
    DESENHO TÉCNICO FOLHADE DESNHO – LAYOUT E DIMENSÕES NBR 10068 / OUT / 1987 Prof: André Veiga
  • 45.
    DESENHO TÉCNICO CONTEÚDO DAFOLHA PARA DESENHO TÉCNICO 10.582 - DEZ/1998 Prof: André Veiga
  • 46.
    DESENHO TÉCNICO CONTEÚDO DAFOLHA PARA DESENHO TÉCNICO NBR 10.582 / DEZ/1988 Esta Norma fixa as condições exigíveis para a localização, disposição e conteúdo do espaço para desenho, espaço para texto e espaço para legenda. A folha para o desenho deve conter: * espaço para Desenho; * espaço para Texto (Legenda); * espaço para Carimbo. Prof: André Veiga
  • 47.
    DESENHO TÉCNICO ESPAÇO PARA ESPAÇO PARA ESPAÇO PARA TEXTO (LEGENDA) DESENHO DESENHO ESPAÇO PARA TEXTO (LEGENDA) CARIMBO CARIMBO Prof: André Veiga
  • 48.
    DESENHO TÉCNICO Prof: André Veiga
  • 49.
    DESENHO TÉCNICO PREPARANDO A ÁREA DE TRABALHO Prof: André Veiga
  • 50.
    PREPARANDO A SUPERFÍCIE DE TRABALHO FIXAÇÃO DO PAPEL (FORMATO A3) NA MESA DE TRABALHO B Alinha o folha de papel manteiga utilizando a régua paralela. RÉGUA PARALELA Fixa um pedaço de fita adesiva em A e outro em B, e tenciona nas A direções indicadas Prof. André Veiga
  • 51.
    PREPARANDO A SUPERFÍCIE DE TRABALHO FIXAÇÃO DO PAPEL (FORMATO A3) NA MESA DE TRABALHO C B Faz-se o mesmo procedimento, agora em C e D. A D Prof. André Veiga
  • 52.
    PRANCHA – CARIMBO ÁREA PARA DESENHO 175 mm LEGENDA CARIMBO 50 mm Prof. André Veiga
  • 53.
    PRANCHA – DOBRANGEM 105 m m 185 m m Prof. André Veiga
  • 54.
  • 55.
    DESENHO TÉCNICO Prof: André Veiga
  • 56.
    DESENHO TÉCNICO Prof: André Veiga
  • 57.
    DESENHO TÉCNICO Prof: André Veiga
  • 58.
    DESENHO TÉCNICO Prof: André Veiga
  • 59.
    DESENHO TÉCNICO Prof: André Veiga
  • 60.
    DESENHO TÉCNICO Prof: André Veiga
  • 61.
    DESENHO TÉCNICO PAUTA SUPERIOR PAUTA INFERIOR Prof: André Veiga
  • 62.
    DESENHO TÉCNICO EMPREGO DEESCALAS EM DESENHO TÉCNICO NBR 8196 / OUT/1983 Prof: André Veiga
  • 63.
    DESENHO TÉCNICO EMPREGO DE ESCALAS EM DESENHO TÉCNICO NBR 8196 / OUT/1983 DEFINIÇÃO É a relação da dimensão linear de um elemento e/ou de um objeto representado no desenho original para a dimensão real do mesmo elemento e/ou do próprio objeto. Prof: André Veiga
  • 64.
    DESENHO TÉCNICO EMPREGO DE ESCALAS EM DESENHO TÉCNICO NBR 8196 / OUT/1983 2.2 – Escala Natural – Escala com a relação 1:1. 2.3 – Escala de Redução – Escala onde a relação é menor do que 1:1; é tanto menor quanto diminui sua relação de decremento. 2.3 – Escala de ampliação – Escala onde a relação é mais que 1:1; é tanto maior quanto aumenta sua relação de incremento Prof: André Veiga
  • 65.
    DESENHO TÉCNICO EMPREGO DEESCALAS EM DESENHO TÉCNICO NBR 8196 / OUT/1983 As escalas recomendadas para uso em desenho técnico são especificadas na tabela. Categoria Escalas recomendadas Escala de ampliação 50:1 20:1 10:1 5:1 2:1 Escala natural 1:1 Escala de redução 1:2 1:5 1:10 1:20 1:50 1:100 1:200 1:500 1:1000 Prof: André Veiga
  • 66.
    DESENHO TÉCNICO EMPREGO DE ESCALAS EM DESENHO TÉCNICO NBR 8196 / OUT/1983 ESCALÍMETRO – Ferramenta utilizada para ampliar ou reduzir um Desenho Técnico. Prof: André Veiga
  • 67.
    DESENHO TÉCNICO COTAGEM EM DESENHO TÉCNICO NBR10.126 – NOV/1987 Prof: André Veiga
  • 68.
    DESENHO TÉCNICO A indicaçãode medidas no desenho técnico recebe o nome de cotagem. Ao indicar as medidas ou cotas, no desenho técnico, deve-se seguir determinadas normas técnicas. A cotagem é normalizada pela norma ABNT/NBR 10126/1987. Prof: André Veiga
  • 69.
    DESENHO TÉCNICO ELEMENTOS DACOTAGEM - Linha de cota = são finas, continuas com setas ou traços nas extremidades; - Linha de extensão = É uma linha fina, continua, que limita as linhas de cota; - Cota = São os números que indicam as medidas da peça e de seus detalhes; Prof: André Veiga
  • 70.
    DESENHO TÉCNICO Prof: André Veiga
  • 71.
    DESENHO TÉCNICO OBSERVAÇÕES A distancia entre a Linha de Cota e a Linha do Desenho deverá ser de 7mm; A Linha de Extensão deverá ultrapassar a Linha de Conta em 3mm; A Linha de Extensão não deve tocar no Desenho; As setas que findam a Linha de Cota deverão, obrigatoriamente, tocar na Linha de Extensão, tendo um comprimento de 3mm; Prof: André Veiga
  • 72.
    DESENHO TÉCNICO OBSERVAÇÕES O texto da Cota deverá ter uma altura de 3mm, igual ao comprimento da seta da Linha de Cota; Não se coloca o símbolo da unidade ( com exceção de Polegada e Grau); As cotas devem ser colocadas de maneira que o desenho seja lido da esquerda para a direita e de baixo para cima; As cotas devem ser indicadas nas Vistas Ortográficas; Deve-se evitar cotar elementos representados por linhas tracejados. Prof: André Veiga