Pagina 1 1 3 d1e 31 
Leitura e Interpretação de 
Folha padrão para execução de treino ou avaliação 
ALUNO : 
A 4 
FTC 
TÍTULO: 
Faculdade de Tecnologia e Ciências 
. 
PROJEÇÃO: ESCALA : 
Folha : 
/ 
TOLERÂNCIAS: MATERIAL: 
DATA: 
Desenho Técnico 
CADERNO DE EXERCÍCIOS 
Docente: Ivanoé João Rodowanski 
Curso: Engenharias 1°Unidade
1) De posse dos conhecimentos adquiridos sobre escalas, complete o quadro abaixo: 
Dimensão do Desenho 
Escala 
Dimensão da Peça 
Pagina 2 2 3 d1e 31 
50 
1:2 
238 
238 
125 
25 
Folha padrão para execução de treino ou avaliação 
ALUNO : 
A 4 
FTC 
TÍTULO: 
Faculdade de Tecnologia e Ciências 
. 
PROJEÇÃO: ESCALA : 
Folha : 
/ 
TOLERÂNCIAS: MATERIAL: 
DATA: 
1:10 
450 
60 
300 
1:1 
92 
380 
2:1 
120 
12 
1:5 
100 
175 
5:1
2) Identifique e numere as projeções correspondentes a cada peça apresentada em 
perspectiva: 
Pagina 3 3 3 d1e 31 
Folha padrão para execução de treino ou avaliação 
ALUNO : 
A 4 
FTC 
TÍTULO: 
Faculdade de Tecnologia e Ciências 
. 
PROJEÇÃO: ESCALA : 
Folha : 
/ 
TOLERÂNCIAS: MATERIAL: 
DATA:
3) Identifique e numere as projeções correspondentes a cada peça apresentada em 
perspectiva: 
Pagina 4 4 3 d1e 31 
Folha padrão para execução de treino ou avaliação 
ALUNO : 
A 4 
FTC 
TÍTULO: 
Faculdade de Tecnologia e Ciências 
. 
PROJEÇÃO: ESCALA : 
Folha : 
/ 
TOLERÂNCIAS: MATERIAL: 
DATA:
4) Dadas as projeções ortogonais abaixo, complete as vistas com as linhas adequadas, 
quando necessário. 
Pagina 5 5 3 d1e 31 
Folha padrão para execução de treino ou avaliação 
ALUNO : 
A 4 
FTC 
TÍTULO: 
Faculdade de Tecnologia e Ciências 
. 
PROJEÇÃO: ESCALA : 
Folha : 
/ 
TOLERÂNCIAS: MATERIAL: 
DATA:
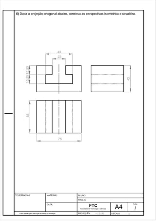
5) Dada a projeção ortogonal abaixo, construa as perspectivas isométrica e cavaleira. 
Pagina 6 6 3 d1e 31 
Folha padrão para execução de treino ou avaliação 
ALUNO : 
A 4 
FTC 
TÍTULO: 
Faculdade de Tecnologia e Ciências 
. 
PROJEÇÃO: ESCALA : 
Folha : 
/ 
TOLERÂNCIAS: MATERIAL: 
DATA:
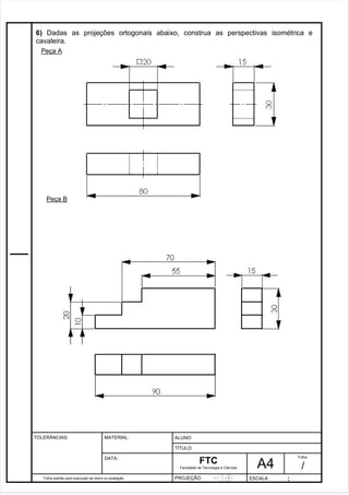
6) Dadas as projeções ortogonais abaixo, construa as perspectivas isométrica e 
cavaleira. 
Pagina 7 7 3 d1e 31 
Folha padrão para execução de treino ou avaliação 
ALUNO : 
A 4 
FTC 
TÍTULO: 
Faculdade de Tecnologia e Ciências 
. 
PROJEÇÃO: ESCALA : 
Folha : 
/ 
TOLERÂNCIAS: MATERIAL: 
DATA: 
Peça A 
Peça B
7) Com a folha na posição transversal, desenhe as seis vistas da cantoneira de aço 
1020 abaixo, em escala 1:1. 
Pagina 8 8 3 d1e 31 
Folha padrão para execução de treino ou avaliação 
ALUNO : 
A 4 
FTC 
TÍTULO: 
Faculdade de Tecnologia e Ciências 
. 
PROJEÇÃO: ESCALA : 
Folha : 
/ 
TOLERÂNCIAS: MATERIAL: 
DATA:
Pagina 9 9 3 d1e 31 
8) Desenhe e cote o acoplamento de aço 1020, em escala 1:1. 
Altura total: 80 mm, 
Furo superior – diâmetro: 20mm, 
Furo inferior – diâmetro: 15 mm. 
Folha padrão para execução de treino ou avaliação 
ALUNO : 
A 4 
FTC 
TÍTULO: 
Faculdade de Tecnologia e Ciências 
. 
PROJEÇÃO: ESCALA : 
Folha : 
/ 
TOLERÂNCIAS: MATERIAL: 
DATA:
Pagina 10 1 0 3de1 31 
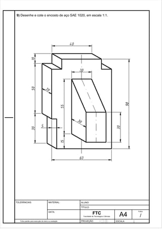
9) Desenhe e cote o encosto de aço SAE 1020, em escala 1:1. 
Folha padrão para execução de treino ou avaliação 
ALUNO : 
A 4 
FTC 
TÍTULO: 
Faculdade de Tecnologia e Ciências 
. 
PROJEÇÃO: ESCALA : 
Folha : 
/ 
TOLERÂNCIAS: MATERIAL: 
DATA:
10) Desenhar as três vistas e cotar, sob a forma de esboço, as peças abaixo. 
Escala 1:1. 
Pagina 11 1 1 3de1 31 
Folha padrão para execução de treino ou avaliação 
ALUNO : 
A 4 
FTC 
TÍTULO: 
Faculdade de Tecnologia e Ciências 
. 
PROJEÇÃO: ESCALA : 
Folha : 
/ 
TOLERÂNCIAS: MATERIAL: 
DATA:
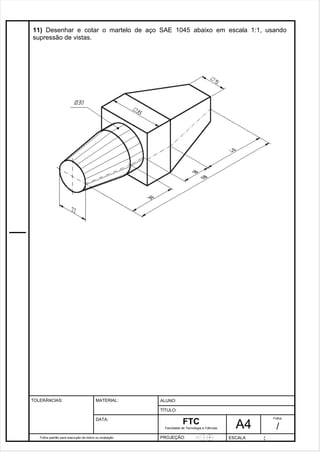
11) Desenhar e cotar o martelo de aço SAE 1045 abaixo em escala 1:1, usando 
supressão de vistas. 
Pagina 12 1 2 3de1 31 
Folha padrão para execução de treino ou avaliação 
ALUNO : 
A 4 
FTC 
TÍTULO: 
Faculdade de Tecnologia e Ciências 
. 
PROJEÇÃO: ESCALA : 
Folha : 
/ 
TOLERÂNCIAS: MATERIAL: 
DATA:
12) Desenhe as vistas frontal e lateral direita da tampa de ferro fundido em escala 1:1. 
Folha na posição transversal. Dados: 
R1: 15mm 
R2: 10mm 
R3: 5mm 
R4: 2mm 
Obs.: O raio R1 e o furo têm o mesmo centro. Base alisada, demais faces brutas, sem 
rebarbas. 
Pagina 13 1 3 3de1 31 
Folha padrão para execução de treino ou avaliação 
ALUNO : 
A 4 
FTC 
TÍTULO: 
Faculdade de Tecnologia e Ciências 
. 
PROJEÇÃO: ESCALA : 
Folha : 
/ 
TOLERÂNCIAS: MATERIAL: 
DATA:
13) Desenhe e cote o suporte de aço 4340, em escala 1:1. Use a folha na posição 
transversal. Base e faces internas de 20 mm alisadas, demais faces desbastadas. 
Pagina 14 1 4 3de1 31 
Folha padrão para execução de treino ou avaliação 
ALUNO : 
A 4 
FTC 
TÍTULO: 
Faculdade de Tecnologia e Ciências 
. 
PROJEÇÃO: ESCALA : 
Folha : 
/ 
TOLERÂNCIAS: MATERIAL: 
DATA:
14) Desenhe e cote a guia de bronze em escala 1:1. Use a folha na posição transversal. 
Face inclinada alisada e demais faces desbastadas. 
Pagina 15 1 5 3de1 31 
Folha padrão para execução de treino ou avaliação 
ALUNO : 
A 4 
FTC 
TÍTULO: 
Faculdade de Tecnologia e Ciências 
. 
PROJEÇÃO: ESCALA : 
Folha : 
/ 
TOLERÂNCIAS: MATERIAL: 
DATA:
15) De posse dos conhecimentos técnicos sobre cotagem, analise a projeção e a 
perspectiva dadas e responda ao que se pede. 
Pagina 16 1 6 3de1 31 
Folha padrão para execução de treino ou avaliação 
ALUNO : 
A 4 
FTC 
TÍTULO: 
Faculdade de Tecnologia e Ciências 
. 
PROJEÇÃO: ESCALA : 
Folha : 
/ 
TOLERÂNCIAS: MATERIAL: 
DATA: 
C 
E 
D 
A 
B 
F 
Valor das dimensões: 
A = _______ 
B = _______ 
C = _______ 
D = _______ 
E = _______ 
F = _______
16) Observe a vista técnica de cada uma das peças dadas e, no primeiro quadro, 
represente em corte total e no segundo represente em meio corte, conforme o exemplo: 
Pagina 17 1 7 3de1 31 
Folha padrão para execução de treino ou avaliação 
ALUNO : 
A 4 
FTC 
TÍTULO: 
Faculdade de Tecnologia e Ciências 
. 
PROJEÇÃO: ESCALA : 
Folha : 
/ 
TOLERÂNCIAS: MATERIAL: 
DATA:
17) Desenhe em duas vistas e cote o calço de aço 1020. Vista frontal em corte, como 
indicado. Escala 1:1. 
Pagina 18 1 8 3de1 31 
Folha padrão para execução de treino ou avaliação 
ALUNO : 
A 4 
FTC 
TÍTULO: 
Faculdade de Tecnologia e Ciências 
. 
PROJEÇÃO: ESCALA : 
Folha : 
/ 
TOLERÂNCIAS: MATERIAL: 
DATA:
18) Desenhe em uma vista, com corte parcial, a base em latão. Cote. Escala 1:1. 
Dados: 
Cilindro médio - diâmetro: 40mm 
Raio de arredondamento de transição R igual a 5mm 
Furo passante – diâmetro: 20mm 
Rebaixo: 30x30x15mm 
Pagina 19 1 9 3de1 31 
Folha padrão para execução de treino ou avaliação 
ALUNO : 
A 4 
FTC 
TÍTULO: 
Faculdade de Tecnologia e Ciências 
. 
PROJEÇÃO: ESCALA : 
Folha : 
/ 
TOLERÂNCIAS: MATERIAL: 
DATA:
19) Desenhe em uma vista o eixo de aço SAE 1045, representando as seções que 
forem necessárias fora da vista. Usar folha na posição transversal e escala 1:1. Cotar. 
Pagina 20 2 0 3de1 31 
Folha padrão para execução de treino ou avaliação 
ALUNO : 
A 4 
FTC 
TÍTULO: 
Faculdade de Tecnologia e Ciências 
. 
PROJEÇÃO: ESCALA : 
Folha : 
/ 
TOLERÂNCIAS: MATERIAL: 
DATA:
CASSOL, G.; NETO, R. A.; ANZOLIN, R. M. (Org.) Desenho Técnico 
Mecânico – Caderno de Exercícios. Florianópolis: SENAI/SC, 2004. 
SPECK, Henderson José; PEIXOTO, Virgílio Vieira. Manual Básico de 
Desenho Técnico. Florianópolis: UFSC, 2004. 3ed. 
Pagina 21 2 1 3de1 31 
REFERÊNCIAS: 
MALATESTA, Edijarme. Curso Prático de Desenho Técnico 
Mecânico. São Paulo: Prismática. 
TELECURSO 2000. Leitura e Interpretação de Desenho Técnico 
Mecânico. Volumes 1, 2 e 3. São Paulo: Globo, 2000. 
Folha padrão para execução de treino ou avaliação 
ALUNO : 
A 4 
FTC 
TÍTULO: 
Faculdade de Tecnologia e Ciências 
. 
PROJEÇÃO: ESCALA : 
Folha : 
/ 
TOLERÂNCIAS: MATERIAL: 
DATA:
Pagina 22 2 2 3de1 31 
Folha padrão para execução de treino ou avaliação 
ALUNO : 
A 4 
FTC 
TÍTULO: 
Faculdade de Tecnologia e Ciências 
. 
PROJEÇÃO: ESCALA : 
Folha : 
/ 
TOLERÂNCIAS: MATERIAL: 
DATA:
Pagina 23 2 3 3de1 31 
Folha padrão para execução de treino ou avaliação 
ALUNO : 
A 4 
FTC 
TÍTULO: 
Faculdade de Tecnologia e Ciências 
. 
PROJEÇÃO: ESCALA : 
Folha : 
/ 
TOLERÂNCIAS: MATERIAL: 
DATA:
Pagina 24 2 4 3de1 31 
Folha padrão para execução de treino ou avaliação 
ALUNO : 
A 4 
FTC 
TÍTULO: 
Faculdade de Tecnologia e Ciências 
. 
PROJEÇÃO: ESCALA : 
Folha : 
/ 
TOLERÂNCIAS: MATERIAL: 
DATA:
Pagina 25 2 5 3de1 31 
Folha padrão para execução de treino ou avaliação 
ALUNO : 
A 4 
FTC 
TÍTULO: 
Faculdade de Tecnologia e Ciências 
. 
PROJEÇÃO: ESCALA : 
Folha : 
/ 
TOLERÂNCIAS: MATERIAL: 
DATA:
Pagina 26 2 6 3de1 31 
Folha padrão para execução de treino ou avaliação 
ALUNO : 
A 4 
FTC 
TÍTULO: 
Faculdade de Tecnologia e Ciências 
. 
PROJEÇÃO: ESCALA : 
Folha : 
/ 
TOLERÂNCIAS: MATERIAL: 
DATA:
Pagina 27 2 7 3de1 31 
Folha padrão para execução de treino ou avaliação 
ALUNO : 
A 4 
FTC 
TÍTULO: 
Faculdade de Tecnologia e Ciências 
. 
PROJEÇÃO: ESCALA : 
Folha : 
/ 
TOLERÂNCIAS: MATERIAL: 
DATA:

51725631 caderno-de-exercicios-desenho-tecnico (1)

  • 1.
    Pagina 1 13 d1e 31 Leitura e Interpretação de Folha padrão para execução de treino ou avaliação ALUNO : A 4 FTC TÍTULO: Faculdade de Tecnologia e Ciências . PROJEÇÃO: ESCALA : Folha : / TOLERÂNCIAS: MATERIAL: DATA: Desenho Técnico CADERNO DE EXERCÍCIOS Docente: Ivanoé João Rodowanski Curso: Engenharias 1°Unidade
  • 2.
    1) De possedos conhecimentos adquiridos sobre escalas, complete o quadro abaixo: Dimensão do Desenho Escala Dimensão da Peça Pagina 2 2 3 d1e 31 50 1:2 238 238 125 25 Folha padrão para execução de treino ou avaliação ALUNO : A 4 FTC TÍTULO: Faculdade de Tecnologia e Ciências . PROJEÇÃO: ESCALA : Folha : / TOLERÂNCIAS: MATERIAL: DATA: 1:10 450 60 300 1:1 92 380 2:1 120 12 1:5 100 175 5:1
  • 3.
    2) Identifique enumere as projeções correspondentes a cada peça apresentada em perspectiva: Pagina 3 3 3 d1e 31 Folha padrão para execução de treino ou avaliação ALUNO : A 4 FTC TÍTULO: Faculdade de Tecnologia e Ciências . PROJEÇÃO: ESCALA : Folha : / TOLERÂNCIAS: MATERIAL: DATA:
  • 4.
    3) Identifique enumere as projeções correspondentes a cada peça apresentada em perspectiva: Pagina 4 4 3 d1e 31 Folha padrão para execução de treino ou avaliação ALUNO : A 4 FTC TÍTULO: Faculdade de Tecnologia e Ciências . PROJEÇÃO: ESCALA : Folha : / TOLERÂNCIAS: MATERIAL: DATA:
  • 5.
    4) Dadas asprojeções ortogonais abaixo, complete as vistas com as linhas adequadas, quando necessário. Pagina 5 5 3 d1e 31 Folha padrão para execução de treino ou avaliação ALUNO : A 4 FTC TÍTULO: Faculdade de Tecnologia e Ciências . PROJEÇÃO: ESCALA : Folha : / TOLERÂNCIAS: MATERIAL: DATA:
  • 6.
    5) Dada aprojeção ortogonal abaixo, construa as perspectivas isométrica e cavaleira. Pagina 6 6 3 d1e 31 Folha padrão para execução de treino ou avaliação ALUNO : A 4 FTC TÍTULO: Faculdade de Tecnologia e Ciências . PROJEÇÃO: ESCALA : Folha : / TOLERÂNCIAS: MATERIAL: DATA:
  • 7.
    6) Dadas asprojeções ortogonais abaixo, construa as perspectivas isométrica e cavaleira. Pagina 7 7 3 d1e 31 Folha padrão para execução de treino ou avaliação ALUNO : A 4 FTC TÍTULO: Faculdade de Tecnologia e Ciências . PROJEÇÃO: ESCALA : Folha : / TOLERÂNCIAS: MATERIAL: DATA: Peça A Peça B
  • 8.
    7) Com afolha na posição transversal, desenhe as seis vistas da cantoneira de aço 1020 abaixo, em escala 1:1. Pagina 8 8 3 d1e 31 Folha padrão para execução de treino ou avaliação ALUNO : A 4 FTC TÍTULO: Faculdade de Tecnologia e Ciências . PROJEÇÃO: ESCALA : Folha : / TOLERÂNCIAS: MATERIAL: DATA:
  • 9.
    Pagina 9 93 d1e 31 8) Desenhe e cote o acoplamento de aço 1020, em escala 1:1. Altura total: 80 mm, Furo superior – diâmetro: 20mm, Furo inferior – diâmetro: 15 mm. Folha padrão para execução de treino ou avaliação ALUNO : A 4 FTC TÍTULO: Faculdade de Tecnologia e Ciências . PROJEÇÃO: ESCALA : Folha : / TOLERÂNCIAS: MATERIAL: DATA:
  • 10.
    Pagina 10 10 3de1 31 9) Desenhe e cote o encosto de aço SAE 1020, em escala 1:1. Folha padrão para execução de treino ou avaliação ALUNO : A 4 FTC TÍTULO: Faculdade de Tecnologia e Ciências . PROJEÇÃO: ESCALA : Folha : / TOLERÂNCIAS: MATERIAL: DATA:
  • 11.
    10) Desenhar astrês vistas e cotar, sob a forma de esboço, as peças abaixo. Escala 1:1. Pagina 11 1 1 3de1 31 Folha padrão para execução de treino ou avaliação ALUNO : A 4 FTC TÍTULO: Faculdade de Tecnologia e Ciências . PROJEÇÃO: ESCALA : Folha : / TOLERÂNCIAS: MATERIAL: DATA:
  • 12.
    11) Desenhar ecotar o martelo de aço SAE 1045 abaixo em escala 1:1, usando supressão de vistas. Pagina 12 1 2 3de1 31 Folha padrão para execução de treino ou avaliação ALUNO : A 4 FTC TÍTULO: Faculdade de Tecnologia e Ciências . PROJEÇÃO: ESCALA : Folha : / TOLERÂNCIAS: MATERIAL: DATA:
  • 13.
    12) Desenhe asvistas frontal e lateral direita da tampa de ferro fundido em escala 1:1. Folha na posição transversal. Dados: R1: 15mm R2: 10mm R3: 5mm R4: 2mm Obs.: O raio R1 e o furo têm o mesmo centro. Base alisada, demais faces brutas, sem rebarbas. Pagina 13 1 3 3de1 31 Folha padrão para execução de treino ou avaliação ALUNO : A 4 FTC TÍTULO: Faculdade de Tecnologia e Ciências . PROJEÇÃO: ESCALA : Folha : / TOLERÂNCIAS: MATERIAL: DATA:
  • 14.
    13) Desenhe ecote o suporte de aço 4340, em escala 1:1. Use a folha na posição transversal. Base e faces internas de 20 mm alisadas, demais faces desbastadas. Pagina 14 1 4 3de1 31 Folha padrão para execução de treino ou avaliação ALUNO : A 4 FTC TÍTULO: Faculdade de Tecnologia e Ciências . PROJEÇÃO: ESCALA : Folha : / TOLERÂNCIAS: MATERIAL: DATA:
  • 15.
    14) Desenhe ecote a guia de bronze em escala 1:1. Use a folha na posição transversal. Face inclinada alisada e demais faces desbastadas. Pagina 15 1 5 3de1 31 Folha padrão para execução de treino ou avaliação ALUNO : A 4 FTC TÍTULO: Faculdade de Tecnologia e Ciências . PROJEÇÃO: ESCALA : Folha : / TOLERÂNCIAS: MATERIAL: DATA:
  • 16.
    15) De possedos conhecimentos técnicos sobre cotagem, analise a projeção e a perspectiva dadas e responda ao que se pede. Pagina 16 1 6 3de1 31 Folha padrão para execução de treino ou avaliação ALUNO : A 4 FTC TÍTULO: Faculdade de Tecnologia e Ciências . PROJEÇÃO: ESCALA : Folha : / TOLERÂNCIAS: MATERIAL: DATA: C E D A B F Valor das dimensões: A = _______ B = _______ C = _______ D = _______ E = _______ F = _______
  • 17.
    16) Observe avista técnica de cada uma das peças dadas e, no primeiro quadro, represente em corte total e no segundo represente em meio corte, conforme o exemplo: Pagina 17 1 7 3de1 31 Folha padrão para execução de treino ou avaliação ALUNO : A 4 FTC TÍTULO: Faculdade de Tecnologia e Ciências . PROJEÇÃO: ESCALA : Folha : / TOLERÂNCIAS: MATERIAL: DATA:
  • 18.
    17) Desenhe emduas vistas e cote o calço de aço 1020. Vista frontal em corte, como indicado. Escala 1:1. Pagina 18 1 8 3de1 31 Folha padrão para execução de treino ou avaliação ALUNO : A 4 FTC TÍTULO: Faculdade de Tecnologia e Ciências . PROJEÇÃO: ESCALA : Folha : / TOLERÂNCIAS: MATERIAL: DATA:
  • 19.
    18) Desenhe emuma vista, com corte parcial, a base em latão. Cote. Escala 1:1. Dados: Cilindro médio - diâmetro: 40mm Raio de arredondamento de transição R igual a 5mm Furo passante – diâmetro: 20mm Rebaixo: 30x30x15mm Pagina 19 1 9 3de1 31 Folha padrão para execução de treino ou avaliação ALUNO : A 4 FTC TÍTULO: Faculdade de Tecnologia e Ciências . PROJEÇÃO: ESCALA : Folha : / TOLERÂNCIAS: MATERIAL: DATA:
  • 20.
    19) Desenhe emuma vista o eixo de aço SAE 1045, representando as seções que forem necessárias fora da vista. Usar folha na posição transversal e escala 1:1. Cotar. Pagina 20 2 0 3de1 31 Folha padrão para execução de treino ou avaliação ALUNO : A 4 FTC TÍTULO: Faculdade de Tecnologia e Ciências . PROJEÇÃO: ESCALA : Folha : / TOLERÂNCIAS: MATERIAL: DATA:
  • 21.
    CASSOL, G.; NETO,R. A.; ANZOLIN, R. M. (Org.) Desenho Técnico Mecânico – Caderno de Exercícios. Florianópolis: SENAI/SC, 2004. SPECK, Henderson José; PEIXOTO, Virgílio Vieira. Manual Básico de Desenho Técnico. Florianópolis: UFSC, 2004. 3ed. Pagina 21 2 1 3de1 31 REFERÊNCIAS: MALATESTA, Edijarme. Curso Prático de Desenho Técnico Mecânico. São Paulo: Prismática. TELECURSO 2000. Leitura e Interpretação de Desenho Técnico Mecânico. Volumes 1, 2 e 3. São Paulo: Globo, 2000. Folha padrão para execução de treino ou avaliação ALUNO : A 4 FTC TÍTULO: Faculdade de Tecnologia e Ciências . PROJEÇÃO: ESCALA : Folha : / TOLERÂNCIAS: MATERIAL: DATA:
  • 22.
    Pagina 22 22 3de1 31 Folha padrão para execução de treino ou avaliação ALUNO : A 4 FTC TÍTULO: Faculdade de Tecnologia e Ciências . PROJEÇÃO: ESCALA : Folha : / TOLERÂNCIAS: MATERIAL: DATA:
  • 23.
    Pagina 23 23 3de1 31 Folha padrão para execução de treino ou avaliação ALUNO : A 4 FTC TÍTULO: Faculdade de Tecnologia e Ciências . PROJEÇÃO: ESCALA : Folha : / TOLERÂNCIAS: MATERIAL: DATA:
  • 24.
    Pagina 24 24 3de1 31 Folha padrão para execução de treino ou avaliação ALUNO : A 4 FTC TÍTULO: Faculdade de Tecnologia e Ciências . PROJEÇÃO: ESCALA : Folha : / TOLERÂNCIAS: MATERIAL: DATA:
  • 25.
    Pagina 25 25 3de1 31 Folha padrão para execução de treino ou avaliação ALUNO : A 4 FTC TÍTULO: Faculdade de Tecnologia e Ciências . PROJEÇÃO: ESCALA : Folha : / TOLERÂNCIAS: MATERIAL: DATA:
  • 26.
    Pagina 26 26 3de1 31 Folha padrão para execução de treino ou avaliação ALUNO : A 4 FTC TÍTULO: Faculdade de Tecnologia e Ciências . PROJEÇÃO: ESCALA : Folha : / TOLERÂNCIAS: MATERIAL: DATA:
  • 27.
    Pagina 27 27 3de1 31 Folha padrão para execução de treino ou avaliação ALUNO : A 4 FTC TÍTULO: Faculdade de Tecnologia e Ciências . PROJEÇÃO: ESCALA : Folha : / TOLERÂNCIAS: MATERIAL: DATA: