Aula 3: Normalização


Professores:
Eduardo Mariano
Poliana Leite
Normas da ABNT

As normas técnicas que regulam o desenho técnico são
editadas pela ABNT, registradas pelo INMETRO (Instituto
Nacional de Metrologia, Normalização e Qualidade
Industrial) como normas brasileiras -NBR e estão em
consonância com as normas internacionais aprovadas
pela ISO.
Normas da ABNT
• NBR 10647 – DESENHO TÉCNICO –
  NORMA GERAL: define os tipos de desenho


               • aspectos geométricos;
               • grau de elaboração;
               • grau de pormenorização;
               • técnica de execução.
Classificação:
Quanto ao aspecto geométrico:
Projetivo – resultante da projeção do objeto




• Desenho Mecânico
• Desenho de Máquinas
• Desenho de Estruturas
• Desenho Arquitetônico
• Desenho Elétrico/Eletrônico
• Desenho de Tubulações
• Desenho Arquitetônico
Classificação:
Quanto ao aspecto geométrico:
Desenho Não-
Projetivo

Corresponde a desenhos resultantes dos cálculos
algébricos e compreendem os desenhos de gráficos,
diagramas etc..




     Gráfico PERT – Para
     determinar o caminho
     crítico
Grau de elaboração
• Esboço – desenho técnico a mão livre;

• Desenho preliminar – fase intermediária,
  antecede o projeto final, pode sofrer alterações;

• Desenho técnico definitivo ou de execução –
  deve atender as normas técnicas.
Grau de pormenorização
• (Desenho de
  Detalhes e
  Conjuntos)
Técnica de execução
À mão livre                Computador
• O antebraço deve         • Basta obedecer as
  estar     totalmente
  apoiado sobre a            regras do desenho
  prancheta.                 técnico    e   as
• Os traços verticais,       ferramentas    do
  inclinados ou não,         programa.
  são      geralmente
  desenhados          de
  cima para baixo;
• Os              traços
  horizontais        são
  feitos da esquerda
  para a direita.
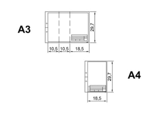
NBR 10068 – FOLHA DE
       DESENHO LAY-OUT E
          DIMENSÕES
• Padroniza as dimensões das folhas utilizadas
  na execução de desenhos técnicos e defini seu
  lay-out com suas respectivas margens e
  legenda.
Legenda
•   Tipo de projeto;
•   Autor do projeto;
•   Endereço;
•   Escala;
•   Área do lote;
•   Área da construção;
•   Número da prancha;
•   Números de prancha;
•   Espaço reservado para aprovação do CREA.
Legenda
NBR 8402 – EXECUÇÃO DE
   CARACTERES PARA ESCRITA EM
       DESENHOS TÉCNICOS




• Visa à uniformidade e à legibilidade para evitar prejuízos
  na clareza do desenho e evitar a possibilidade de
  interpretações erradas;
• Execução de caracteres para escrita em desenho técnico
NBR 8403
Tipos de linha
Tipos de linha
T1




                                  NBR 8403/1984
Projeção fora do plano de corte
Slide 21

T1         retirar dps de mostrar para a turma
           Tatiane; 24/08/2009
Planta baixa




Fonte: Apostila de Desenho de Projeto de Edificações – UFRGS,
Rezende e Gransotto, 2007
Corte transversal
NBR 10582 – APRESENTAÇÃO DA
 FOLHA PARA DESENHO TÉCNICO,
• Normaliza a distribuição do espaço da folha de
  desenho;
• Define a área para texto, o espaço para
  desenho etc..
• Distribuir os desenhos na folha, de modo a
  ocupar toda a área;
• Organizar os textos acima da legenda junto à
  margem direita, ou à esquerda da legenda logo
  acima da margem inferior.
NBR 13142 – DESENHO TÉCNICO –
    DOBRAMENTO DE CÓPIAS
Fixa    a       forma     de
  dobramento de todos os
  formatos de folhas de
  desenho
Para facilitar a fixação em
  pastas,       eles     são
  dobrados        até     as
  dimensões do formato
  A4.
NBR 10126 – Linhas de Cota
Representação gráfica das dimensões   do
desenho técnico de um elemento
NBR 10126 – Linhas de Cota

• Linha de cota e auxiliar: linha estreita
e contίnua;
• Linha auxiliar prolongada além da
linha de cota;
•Deixar pequeno espaço entre auxiliar
e o elemento a ser cotado;
• Linhas de centro não ser utilizadas
como linha de cota.
NBR 10126 – Linhas de Cota




      Linha auxiliar



                       Linha de cota
NBR 10126 – Linhas de Cota

                • Cotagem de raios –
                linha de cota parte do
                centro e estende até
                contorno do arco;
                • Representar letra R na
                frente do valor da cota.
Revisão
( F) Linha de parede é estreita e contίnua.
( V ) O desenho arquitetônico é considerado um desenho
    projetivo.
( V ) Desenho técnico é classificado quanto ao: aspectos
    geométricos,       grau de elaboração,             grau de
    pormenorização, técnica de execução.
( F ) Para facilitar a fixação em pastas, os projetos são
    dobrados até as dimensões do formato A3.
( F ) A marcação do plano de corte é realizada com linha
    traço dois pontos.
( V ) Linha de cota e auxiliar: linha estreita e contίnua;
Referência bibliográfica
• Leitura e interpretação de desenho técnico mecânico
  (publicação do SENAI-SP - Ensino a distância),
  elaborado por Lauro Annanias Pires e   Regina Maria
  Silva, Joel Ferreira;

• Notas de aula - Prof.ªElisa Maria Pivetta Cantarelli, URI;

• INEDI – Instituto Nacional de Ensino a Distância,
  Noções de Desenho Arquitetônico e Construção Civil,
  módulo VI, Curso de Formação de Técnicos em
  Transações Imobiliárias.
FIXAÇÃO DE VISTAS

Aula 3 - Normalização

  • 1.
  • 2.
    Normas da ABNT Asnormas técnicas que regulam o desenho técnico são editadas pela ABNT, registradas pelo INMETRO (Instituto Nacional de Metrologia, Normalização e Qualidade Industrial) como normas brasileiras -NBR e estão em consonância com as normas internacionais aprovadas pela ISO.
  • 3.
    Normas da ABNT •NBR 10647 – DESENHO TÉCNICO – NORMA GERAL: define os tipos de desenho • aspectos geométricos; • grau de elaboração; • grau de pormenorização; • técnica de execução.
  • 4.
    Classificação: Quanto ao aspectogeométrico: Projetivo – resultante da projeção do objeto • Desenho Mecânico • Desenho de Máquinas • Desenho de Estruturas • Desenho Arquitetônico • Desenho Elétrico/Eletrônico • Desenho de Tubulações
  • 5.
  • 6.
    Classificação: Quanto ao aspectogeométrico: Desenho Não- Projetivo Corresponde a desenhos resultantes dos cálculos algébricos e compreendem os desenhos de gráficos, diagramas etc.. Gráfico PERT – Para determinar o caminho crítico
  • 7.
    Grau de elaboração •Esboço – desenho técnico a mão livre; • Desenho preliminar – fase intermediária, antecede o projeto final, pode sofrer alterações; • Desenho técnico definitivo ou de execução – deve atender as normas técnicas.
  • 8.
    Grau de pormenorização •(Desenho de Detalhes e Conjuntos)
  • 9.
    Técnica de execução Àmão livre Computador • O antebraço deve • Basta obedecer as estar totalmente apoiado sobre a regras do desenho prancheta. técnico e as • Os traços verticais, ferramentas do inclinados ou não, programa. são geralmente desenhados de cima para baixo; • Os traços horizontais são feitos da esquerda para a direita.
  • 10.
    NBR 10068 –FOLHA DE DESENHO LAY-OUT E DIMENSÕES • Padroniza as dimensões das folhas utilizadas na execução de desenhos técnicos e defini seu lay-out com suas respectivas margens e legenda.
  • 12.
    Legenda • Tipo de projeto; • Autor do projeto; • Endereço; • Escala; • Área do lote; • Área da construção; • Número da prancha; • Números de prancha; • Espaço reservado para aprovação do CREA.
  • 13.
  • 16.
    NBR 8402 –EXECUÇÃO DE CARACTERES PARA ESCRITA EM DESENHOS TÉCNICOS • Visa à uniformidade e à legibilidade para evitar prejuízos na clareza do desenho e evitar a possibilidade de interpretações erradas; • Execução de caracteres para escrita em desenho técnico
  • 17.
  • 19.
  • 21.
    T1 NBR 8403/1984 Projeção fora do plano de corte
  • 22.
    Slide 21 T1 retirar dps de mostrar para a turma Tatiane; 24/08/2009
  • 23.
    Planta baixa Fonte: Apostilade Desenho de Projeto de Edificações – UFRGS, Rezende e Gransotto, 2007
  • 24.
  • 25.
    NBR 10582 –APRESENTAÇÃO DA FOLHA PARA DESENHO TÉCNICO, • Normaliza a distribuição do espaço da folha de desenho; • Define a área para texto, o espaço para desenho etc.. • Distribuir os desenhos na folha, de modo a ocupar toda a área; • Organizar os textos acima da legenda junto à margem direita, ou à esquerda da legenda logo acima da margem inferior.
  • 26.
    NBR 13142 –DESENHO TÉCNICO – DOBRAMENTO DE CÓPIAS Fixa a forma de dobramento de todos os formatos de folhas de desenho Para facilitar a fixação em pastas, eles são dobrados até as dimensões do formato A4.
  • 29.
    NBR 10126 –Linhas de Cota Representação gráfica das dimensões do desenho técnico de um elemento
  • 30.
    NBR 10126 –Linhas de Cota • Linha de cota e auxiliar: linha estreita e contίnua; • Linha auxiliar prolongada além da linha de cota; •Deixar pequeno espaço entre auxiliar e o elemento a ser cotado; • Linhas de centro não ser utilizadas como linha de cota.
  • 31.
    NBR 10126 –Linhas de Cota Linha auxiliar Linha de cota
  • 32.
    NBR 10126 –Linhas de Cota • Cotagem de raios – linha de cota parte do centro e estende até contorno do arco; • Representar letra R na frente do valor da cota.
  • 33.
    Revisão ( F) Linhade parede é estreita e contίnua. ( V ) O desenho arquitetônico é considerado um desenho projetivo. ( V ) Desenho técnico é classificado quanto ao: aspectos geométricos, grau de elaboração, grau de pormenorização, técnica de execução. ( F ) Para facilitar a fixação em pastas, os projetos são dobrados até as dimensões do formato A3. ( F ) A marcação do plano de corte é realizada com linha traço dois pontos. ( V ) Linha de cota e auxiliar: linha estreita e contίnua;
  • 34.
    Referência bibliográfica • Leiturae interpretação de desenho técnico mecânico (publicação do SENAI-SP - Ensino a distância), elaborado por Lauro Annanias Pires e Regina Maria Silva, Joel Ferreira; • Notas de aula - Prof.ªElisa Maria Pivetta Cantarelli, URI; • INEDI – Instituto Nacional de Ensino a Distância, Noções de Desenho Arquitetônico e Construção Civil, módulo VI, Curso de Formação de Técnicos em Transações Imobiliárias.
  • 35.