Obra concluída | autor: PontoArq©
Plano e projeto
Fases do projeto
Projetos complementares
Compatibilização
Projeto executivo
Detalhamento
Princípios norteadores
Representação gráfica
Relatórios complementares
Gestão de projetos
Exemplos de arquitetura
Exemplos de mobiliário
Desenho do Objeto
Referências
Projeto Executivo
Desenho do Objeto | maio de 2020
construção
arquitetura
especificação
racionalidade
técnica
detalhe gestão
projeto
execução obra
materiais
Plano e projeto
Plano | Diretrizes, balizamentos, intenções,
orientações gerais, que podem ser
complementadas e detalhadas por um
projeto
Projeto | empreendimento temporário com
o objetivo de criar um produto ou serviço
único, com alguma singularidade | pode ser
individual ou coletivo | pode ter duração
variável, mas sempre finita | projeto tem
começo, meio e fim | projeto chega ao fim
quando alcança seus objetivos, quando
obtém os resultados esperados ou quando
fica claro que os objetivos do projeto não
serão ou não poderão mais ser atingidos |
fim de um projeto deve gerar resultados que
possam ser registrados e compartilhados,
para que sirvam de base para um próximo
projeto
Imagem:CentroAbertoImagens:Biselli&Katchborian
Proposta técnica
Contrato
(comercial)
Fases do projeto
Orientações do CAU
Levantamento
Estudos de casos
Anteprojeto Compatibilização
Projeto legal
(órgãos oficiais)
Projetos
Complementares
(parceiros)
Pré-executivo
Projeto executivo
Reproduções|autor:PontoArq©
Estudo de viabilidade
Estudos preliminares
As-built
Proposta comercial | Documento técnico e
comercial que deve conter, no mínimo:
bases para elaboração da proposta,
coordenação e equipe responsável, escopo
do serviço, apresentação (produtos),
encargos da contratante, encargos da
contratada, prazos de elaboração,
honorários e forma de pagamento
Reproduções | autor: PontoArq©
Contrato | Peça oficial, firmada a partir das
negociações da proposta | documento com
implicações legais e jurídicas
Reproduções | autor: CAU
Reproduções | autor: CAU
Reproduções | autor: CAU
Fases | O parcelamento de honorários de
projeto com escopo reduzido aponta a
proporção dada pela complexidade de cada
fase | projeto executivo é sempre mais que
50%
Levantamento | Coleta
de informações de dados
preexistentes: programa
de necessidades e
demais condicionantes
físicas, ambientais,
estéticas, técnicas,
econômicas, sociais,
culturais, legais etc.
Estudos de casos |
Quadro referencial de
casos com o mesmo
contexto do desafio do
projeto | arquivo de
ideias e soluções
conceituais e técnicas
Pinterest | Edison Ribeiro e Cambuci Arquitetos
Estudos preliminares | solução geral do
problema, considerando as condicionantes e a
definição do partido, ilustrada de modo a
permitir clara compreensão do
empreendimento a ser executado |
Concepção e representação do conjunto de
informações técnicas iniciais e aproximadas,
necessários à compreensão da configuração
do projeto, podendo incluir soluções
alternativas | análise das funções previstas,
estudos ergonômicos , dimensionamento
básico, relações entre formas e funções, bases
para consulta, definição dos materiais e opção
por sistema construtivo
Estudo de viabilidade | Análise e avaliações
para seleção e recomendação de
alternativas para a concepção geral da
edificação
Reproduções | autor: PontoArq©
Anteprojeto | Peças gráficas que servirão de
base para discussão com o cliente até a
definição do projeto | deve permitir
avaliação comparativa, elegendo ao final
aquela que mais viável | pode ser revisado
até sua aprovação | concepção e
representação das informações técnicas
provisórias | estimativas aproximadas de
custos e de prazos dos serviços de obra
implicados | peças gráficas com ambientes e
dimensões e indicação de sistema
construtivo e acabamentos
Reproduções | autor: PontoArq©
Reproduções | autor: PontoArq©
Reproduções | autor: PontoArq©
Reproduções | autor: PontoArq©
Projeto legal | versão do projeto em documentos para aprovação | representação das informações
técnicas necessárias à análise e aprovação, pelas autoridades competentes, da concepção da
edificação e de seus elementos e instalações, com base nas exigências legais (municipal, estadual,
federal), e à obtenção do alvará ou das licenças e demais documentos indispensáveis para as
atividades de construção | Prefeituras, Corpo de Bombeiros, condomínio, Concessionárias (energia,
água etc.), administração de centro comercial, CESTESB, ANVISA, Marinha etc
.
Planta para aprovação em Prefeitura | autor: PontoArq©
Pré-executivo | Após aprovação
do projeto por cliente e órgãos
oficiais, inicia-se o projeto com
dimensionamento exato e
especificações, visando orientar
todo o procedimento
construtivo por meio de
plantas, cortes, elevações e
detalhes em escala adequada à
execução da obra | alto grau de
precisão, indicação de materiais
e uma primeira indicação de
elementos complementares:
estrutura e instalações, por
exemplo | subetapa opcional |
informações técnicas da
edificação e de seus elementos,
instalações e componentes |
orçamentos que servirão para
licitações de obras devem
aguardar o Projeto Executivo
.
Pré-executivo| autor: PontoArq©
Sistemas|Imagem:anatomiaemfoco
Projetos complementares
Projetos Complementares | Infraestrutura do
edifício, similar aos sistemas de um organismo
| projetos desenvolvidos, paralela e
simultaneamente, por profissionais parceiros:
• Estrutura (fundações, cobertura etc.)
• Instalações elétricas (tomadas, iluminação,
lógica, telefonia, rede, CFTV etc.)
• Instalações hidráulicas (agua fria e quente,
esgoto, águas pluviais, detecção e combate
a incêndios etc.)
• Climatização (sistema de ar condicionado,
exaustão etc.)
• Automação (portas, sensores etc.)
• Paisagismo (plantio, irrigação e drenagem)
• ...
Compatibilização|Imagem:AIOengenharia
Projeto de elétrica| Fonte: Ponto Arq©
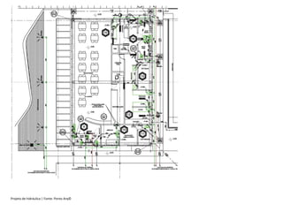
Projeto de hidráulica | Fonte: Ponto Arq©
Projeto de ar condicionado| Fonte: Ponto Arq©
Projeto de paisagismo| Fonte: Ponto Arq©
Compatibilização| Fonte: Ponto Arq©
Compatibilização
Compatibilização | Sobreposição, verificação de interferências entre projetos complementares e
gestão de pedidos de revisão, que podem acontecer entre um ou mais projetos envolvidos |
Coordenação e compatibilização de projetos (CO) – (definição dada pela Resolução CAU/BR nº 51, de
2013): subetapa desenvolvida ao longo de todo o processo de elaboração do projeto | coordenar e
compatibilizar o projeto arquitetônico, urbanístico ou paisagístico com os demais projetos a ele
complementares, podendo ainda incluir a análise das alternativas de viabilização do empreendimento
Projeto executivo
Projeto executivo |
Dimensionamento exato e
especificações, visando
orientar todo o
procedimento construtivo
por meio de plantas,
cortes, elevações e
detalhes em escala
adequada à execução da
obra | representação final
das informações técnicas
da edificação e de seus
elementos, instalações e
componentes, completas,
definitivas, necessárias e
suficientes à licitação
(contratação) e à execução
dos serviços de obra
correspondentes | lei
8.666 de 21 de
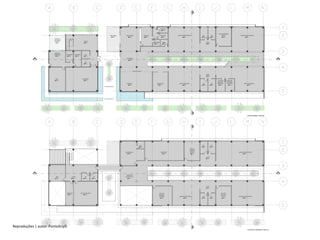
junho de 1993 do Brasil Projeto executivo | Fonte: Ponto Arq©
Detalhes| Fonte: Ponto Arq©
Detalhamento
Detalhamento | Ampliação de áreas
específicas (molhadas, por exemplo), todos os
elementos que não aparecem suficientemente
detalhados nas escalas maiores |usar todos
recursos visuais (perspectiva explodida, por
exemplo) | materiais (piso, parede e teto),
coberturas, aberturas, mobiliários e
equipamentos | suficiente para permitir o
planejamento, orçamento exato e gestão da
construção
Princípios norteadores
Autonomia (projeto autoexplicativo) | visibilidade
(escala crescente para explicar a execução que define o
detalhamento) | explicação de procedimentos
construtivos | atenção aos encontros de materiais
(fixação, arremate e acabamento) | todo o processo de
projeto deve ser documentado | cada projeto é único e
pede pesquisa para especificação atualizada de
materiais (evitar materiais fora de linha) | consultar
fabricante ou contratar consultoria | escritório deve
constituir seu próprio acervo de detalhes
Execução | Fonte: Ponto Arq©
Orientações sobre padrão de desenho| Fonte: Asbea
Representação gráfica
Projeto executivo deve atender todas as
normas técnicas (ABNT e demais órgãos
envolvidos), além das recomendações de
associações que atuam para qualificar
projeto arquitetônico | observar formatos
de papel, dobras das pranchas, caligrafia
técnica, carimbo ou legenda, tipos e
espessuras de linhas, escalas, cotas,
calibragem de plotagem etc.
Relatórios | Fonte: Ponto Arq©
Relatórios complementares
Memorial descritivo e planilha de
quantidades | Especificações e quantificações
dos materiais e serviços componentes do
projeto, de forma a proporcionar o exato
orçamento. O memorial inclui as informações
relativas às atividades desenvolvidas na sua
especificidade, inclusive a listagem dos
documentos produzidos, especificações e
normas técnicas utilizadas, com fontes de
consulta
Obra finalizada | Fonte: Ponto Arq©
As-built | Registro conforme construído, para
futuras intervenções | base para usuários,
documentação de gestão condominial, rota de
fuga ou manual do proprietário, por exemplo |
todo o processo de projeto documentado
Acompanhamento Técnico de Obras |
Assistência e acompanhamento técnico |
arquitetos e técnicos de nível médio| revisões
ou alterações no projeto | resolver fatos não
previstos, surgidos após a conclusão e
aprovação dos mesmos e itens não
contemplados no escopo informado pela
Contratante
Gestão de projetos
BIM
Artia, Trello
Orientações sobre padrão de desenho| Fonte: Asbea
Vía Dutari Viale_Arquitectos | Detalhe construtivo
Exemplos de arquitetura
Allied_Works_Architecture_-_28_-_Allied_Works_Architecture_AWA_SBW_detail_01
College_of_Environmental_Design_UC_Berkeley___Kengo_Kuma___Associates_Sectional_Perspective
Vía_Dutari_Viale_Arquitectos_1303341912-altos-detalle-constructivo-01
IR_arquitectura_-_01_-_IR_arquitectura_casa-aa---08
Dio_Sustentable_-_14_-_Dio_Sustentable_DioPZ-HP_Escantillon
Dorte_Mandrup_Arkitekter_-_42_-_Arkitekter_Construction_Detail
Daniel_Moreno___Sebastián_Calero_05_copy
aft_Arquitectos_-_01_-_aft_Arquitectos_1278434550-09-bnc-axonometrica-despiece-01
Santiago_Viale___Ian_Dutari___Alejandro_Paz_2
Exemplos de mobiliário
Perspectiva esquemática | Fonte: Parque Arvi
Perspectiva esquemática | Fonte: Áureo Castelo Branco
Escopo AV1 parte 2 | Projeto executivo
completo, com detalhe do móvel, plano de
corte, plano de furação e fixação e relação
de materiais
Desenho do Objeto
Parque sonoro | Imagem: Tiago Franco
Referências
Para saber mais
Livros
BAXTER, Mike. Projeto de Produto - Guia Prático para o Design de
Novos Produtos. 2011 — 3ª edição
LOBACH, Bernd. Design Industrial - Bases Para a Configuração dos
Produtos Industriais. 2001
Monografia
RAMOS, Renata Neves. Gestão de projetos simplificada para
empresas de arquitetura e engenharia / R. N. Ramos --São Paulo,
2018. Disponível em: https://bit.ly/2WMrgqm
Sites
Gestão de projetos:
https://www.euax.com.br/2018/08/ferramentas-de-gestao-de-
projetos-mais-utilizadas/
Mood board
https://br.hubspot.com/blog/marketing/como-criar-um-mood-
board-5-ferramentas-para-visualizar-suas-ideias
Trello: https://trello.com/
Reproduções

ARQ | Projeto executivo

  • 1.
    Obra concluída |autor: PontoArq© Plano e projeto Fases do projeto Projetos complementares Compatibilização Projeto executivo Detalhamento Princípios norteadores Representação gráfica Relatórios complementares Gestão de projetos Exemplos de arquitetura Exemplos de mobiliário Desenho do Objeto Referências Projeto Executivo Desenho do Objeto | maio de 2020
  • 2.
  • 3.
    Plano e projeto Plano| Diretrizes, balizamentos, intenções, orientações gerais, que podem ser complementadas e detalhadas por um projeto Projeto | empreendimento temporário com o objetivo de criar um produto ou serviço único, com alguma singularidade | pode ser individual ou coletivo | pode ter duração variável, mas sempre finita | projeto tem começo, meio e fim | projeto chega ao fim quando alcança seus objetivos, quando obtém os resultados esperados ou quando fica claro que os objetivos do projeto não serão ou não poderão mais ser atingidos | fim de um projeto deve gerar resultados que possam ser registrados e compartilhados, para que sirvam de base para um próximo projeto Imagem:CentroAbertoImagens:Biselli&Katchborian
  • 4.
    Proposta técnica Contrato (comercial) Fases doprojeto Orientações do CAU Levantamento Estudos de casos Anteprojeto Compatibilização Projeto legal (órgãos oficiais) Projetos Complementares (parceiros) Pré-executivo Projeto executivo Reproduções|autor:PontoArq© Estudo de viabilidade Estudos preliminares As-built
  • 5.
    Proposta comercial |Documento técnico e comercial que deve conter, no mínimo: bases para elaboração da proposta, coordenação e equipe responsável, escopo do serviço, apresentação (produtos), encargos da contratante, encargos da contratada, prazos de elaboração, honorários e forma de pagamento Reproduções | autor: PontoArq© Contrato | Peça oficial, firmada a partir das negociações da proposta | documento com implicações legais e jurídicas
  • 6.
  • 7.
  • 8.
    Reproduções | autor:CAU Fases | O parcelamento de honorários de projeto com escopo reduzido aponta a proporção dada pela complexidade de cada fase | projeto executivo é sempre mais que 50%
  • 9.
    Levantamento | Coleta deinformações de dados preexistentes: programa de necessidades e demais condicionantes físicas, ambientais, estéticas, técnicas, econômicas, sociais, culturais, legais etc. Estudos de casos | Quadro referencial de casos com o mesmo contexto do desafio do projeto | arquivo de ideias e soluções conceituais e técnicas Pinterest | Edison Ribeiro e Cambuci Arquitetos
  • 10.
    Estudos preliminares |solução geral do problema, considerando as condicionantes e a definição do partido, ilustrada de modo a permitir clara compreensão do empreendimento a ser executado | Concepção e representação do conjunto de informações técnicas iniciais e aproximadas, necessários à compreensão da configuração do projeto, podendo incluir soluções alternativas | análise das funções previstas, estudos ergonômicos , dimensionamento básico, relações entre formas e funções, bases para consulta, definição dos materiais e opção por sistema construtivo Estudo de viabilidade | Análise e avaliações para seleção e recomendação de alternativas para a concepção geral da edificação Reproduções | autor: PontoArq©
  • 14.
    Anteprojeto | Peçasgráficas que servirão de base para discussão com o cliente até a definição do projeto | deve permitir avaliação comparativa, elegendo ao final aquela que mais viável | pode ser revisado até sua aprovação | concepção e representação das informações técnicas provisórias | estimativas aproximadas de custos e de prazos dos serviços de obra implicados | peças gráficas com ambientes e dimensões e indicação de sistema construtivo e acabamentos Reproduções | autor: PontoArq©
  • 15.
  • 16.
  • 17.
  • 18.
    Projeto legal |versão do projeto em documentos para aprovação | representação das informações técnicas necessárias à análise e aprovação, pelas autoridades competentes, da concepção da edificação e de seus elementos e instalações, com base nas exigências legais (municipal, estadual, federal), e à obtenção do alvará ou das licenças e demais documentos indispensáveis para as atividades de construção | Prefeituras, Corpo de Bombeiros, condomínio, Concessionárias (energia, água etc.), administração de centro comercial, CESTESB, ANVISA, Marinha etc . Planta para aprovação em Prefeitura | autor: PontoArq©
  • 19.
    Pré-executivo | Apósaprovação do projeto por cliente e órgãos oficiais, inicia-se o projeto com dimensionamento exato e especificações, visando orientar todo o procedimento construtivo por meio de plantas, cortes, elevações e detalhes em escala adequada à execução da obra | alto grau de precisão, indicação de materiais e uma primeira indicação de elementos complementares: estrutura e instalações, por exemplo | subetapa opcional | informações técnicas da edificação e de seus elementos, instalações e componentes | orçamentos que servirão para licitações de obras devem aguardar o Projeto Executivo . Pré-executivo| autor: PontoArq©
  • 20.
    Sistemas|Imagem:anatomiaemfoco Projetos complementares Projetos Complementares| Infraestrutura do edifício, similar aos sistemas de um organismo | projetos desenvolvidos, paralela e simultaneamente, por profissionais parceiros: • Estrutura (fundações, cobertura etc.) • Instalações elétricas (tomadas, iluminação, lógica, telefonia, rede, CFTV etc.) • Instalações hidráulicas (agua fria e quente, esgoto, águas pluviais, detecção e combate a incêndios etc.) • Climatização (sistema de ar condicionado, exaustão etc.) • Automação (portas, sensores etc.) • Paisagismo (plantio, irrigação e drenagem) • ... Compatibilização|Imagem:AIOengenharia
  • 21.
    Projeto de elétrica|Fonte: Ponto Arq©
  • 22.
    Projeto de hidráulica| Fonte: Ponto Arq©
  • 23.
    Projeto de arcondicionado| Fonte: Ponto Arq©
  • 24.
    Projeto de paisagismo|Fonte: Ponto Arq©
  • 25.
    Compatibilização| Fonte: PontoArq© Compatibilização Compatibilização | Sobreposição, verificação de interferências entre projetos complementares e gestão de pedidos de revisão, que podem acontecer entre um ou mais projetos envolvidos | Coordenação e compatibilização de projetos (CO) – (definição dada pela Resolução CAU/BR nº 51, de 2013): subetapa desenvolvida ao longo de todo o processo de elaboração do projeto | coordenar e compatibilizar o projeto arquitetônico, urbanístico ou paisagístico com os demais projetos a ele complementares, podendo ainda incluir a análise das alternativas de viabilização do empreendimento
  • 26.
    Projeto executivo Projeto executivo| Dimensionamento exato e especificações, visando orientar todo o procedimento construtivo por meio de plantas, cortes, elevações e detalhes em escala adequada à execução da obra | representação final das informações técnicas da edificação e de seus elementos, instalações e componentes, completas, definitivas, necessárias e suficientes à licitação (contratação) e à execução dos serviços de obra correspondentes | lei 8.666 de 21 de junho de 1993 do Brasil Projeto executivo | Fonte: Ponto Arq©
  • 27.
    Detalhes| Fonte: PontoArq© Detalhamento Detalhamento | Ampliação de áreas específicas (molhadas, por exemplo), todos os elementos que não aparecem suficientemente detalhados nas escalas maiores |usar todos recursos visuais (perspectiva explodida, por exemplo) | materiais (piso, parede e teto), coberturas, aberturas, mobiliários e equipamentos | suficiente para permitir o planejamento, orçamento exato e gestão da construção
  • 28.
    Princípios norteadores Autonomia (projetoautoexplicativo) | visibilidade (escala crescente para explicar a execução que define o detalhamento) | explicação de procedimentos construtivos | atenção aos encontros de materiais (fixação, arremate e acabamento) | todo o processo de projeto deve ser documentado | cada projeto é único e pede pesquisa para especificação atualizada de materiais (evitar materiais fora de linha) | consultar fabricante ou contratar consultoria | escritório deve constituir seu próprio acervo de detalhes Execução | Fonte: Ponto Arq©
  • 29.
    Orientações sobre padrãode desenho| Fonte: Asbea Representação gráfica Projeto executivo deve atender todas as normas técnicas (ABNT e demais órgãos envolvidos), além das recomendações de associações que atuam para qualificar projeto arquitetônico | observar formatos de papel, dobras das pranchas, caligrafia técnica, carimbo ou legenda, tipos e espessuras de linhas, escalas, cotas, calibragem de plotagem etc.
  • 30.
    Relatórios | Fonte:Ponto Arq© Relatórios complementares Memorial descritivo e planilha de quantidades | Especificações e quantificações dos materiais e serviços componentes do projeto, de forma a proporcionar o exato orçamento. O memorial inclui as informações relativas às atividades desenvolvidas na sua especificidade, inclusive a listagem dos documentos produzidos, especificações e normas técnicas utilizadas, com fontes de consulta
  • 31.
    Obra finalizada |Fonte: Ponto Arq© As-built | Registro conforme construído, para futuras intervenções | base para usuários, documentação de gestão condominial, rota de fuga ou manual do proprietário, por exemplo | todo o processo de projeto documentado Acompanhamento Técnico de Obras | Assistência e acompanhamento técnico | arquitetos e técnicos de nível médio| revisões ou alterações no projeto | resolver fatos não previstos, surgidos após a conclusão e aprovação dos mesmos e itens não contemplados no escopo informado pela Contratante
  • 32.
    Gestão de projetos BIM Artia,Trello Orientações sobre padrão de desenho| Fonte: Asbea
  • 33.
    Vía Dutari Viale_Arquitectos| Detalhe construtivo Exemplos de arquitetura
  • 34.
  • 35.
  • 36.
  • 37.
  • 38.
  • 39.
  • 40.
  • 41.
  • 42.
  • 43.
    Exemplos de mobiliário Perspectivaesquemática | Fonte: Parque Arvi
  • 44.
    Perspectiva esquemática |Fonte: Áureo Castelo Branco
  • 50.
    Escopo AV1 parte2 | Projeto executivo completo, com detalhe do móvel, plano de corte, plano de furação e fixação e relação de materiais Desenho do Objeto Parque sonoro | Imagem: Tiago Franco
  • 56.
  • 57.
    Livros BAXTER, Mike. Projetode Produto - Guia Prático para o Design de Novos Produtos. 2011 — 3ª edição LOBACH, Bernd. Design Industrial - Bases Para a Configuração dos Produtos Industriais. 2001 Monografia RAMOS, Renata Neves. Gestão de projetos simplificada para empresas de arquitetura e engenharia / R. N. Ramos --São Paulo, 2018. Disponível em: https://bit.ly/2WMrgqm Sites Gestão de projetos: https://www.euax.com.br/2018/08/ferramentas-de-gestao-de- projetos-mais-utilizadas/ Mood board https://br.hubspot.com/blog/marketing/como-criar-um-mood- board-5-ferramentas-para-visualizar-suas-ideias Trello: https://trello.com/ Reproduções