________________________________________________________________
Fatec Sorocaba
TTEECCNNOOLLOOGGIIAA DDEE EESSTTAAMMPPAAGGEEMM
Professor: Eng. Msc. Ivar Benazzi Jr.
Elpidio Gilson Caversan
Apoio:
Monitora: Denise A. Queiroz Lima
DM 0206007-01
Revisão Março 2010
FACULDADE DE TECNOLOGIA DE SOROCABA
w w w . f a t e c . o r g
- Fatec - So - Tecnologia de estampagem -
- 2 -
TECNOLOGIA DE ESTAMPAGEM – ÍNDICE
1- INTRODUÇÃO
1.1- Operações de corte ................................................................................................ pág 04
1.2- Operações de deformação ..................................................................................... pág 06
1.3- Generalidades dos Metais...................................................................................... pág 07
A - Operações no Trabalho dos Metais em Chapas................................................pág 08
B - Os Metais em Chapas ..................................................................................pág 08
C - Fabricação dos Metais Laminados.................................................................. pág 08
D - Características dos Metais em Chapas............................................................ pág 09
E - Características das Chapas.............................................................................. pág 10
F - Verificações das Chapas ........................................................................... pág 10
2- OPERAÇÕES DE CORTE
2.1- Corte com tesoura guilhotina .......................................................................pág 12
A - Força de corte em tesoura guilhotina............................................................. pág 12
B - Fases do corte em tesoura guilhotina............................................................. pág 13
C - Tesoura guilhotina com facas paralelas.......................................................... pág 14
D - Tesoura guilhotina com facas inclinadas....................................................... pág 15
E - Condição máxima de inclinação das facas............................................... pág 16
F - Geometria de corte das facas.......................................................................... pág 18
G - Folga entre as facas da guilhotina................................................................... pág 18
2.2- Puncionamento........................................................................................................pág 18
A - Força de corte no puncionamento................................................................... pág 19
B - Folga entre punção e matriz............................................................................ pág 19
C - Estudo de Lay-out da tira (Baixa Produção)................................................... pág 21
- Utilização racional do material.............................................................. pág 21
- Estampo com disposição normal (Vertical) .......................................... pág 22
- Estampo com disposição normal (Horizontal) ..................................... pág 24
- Estampo com disposição e inversão de corte.................................. pág 25
- Estampo de peças circulares....................................................................pág 26
D – Estudo de Lay-out de fita (Alta Produção) .................................................... pág 30
- Utilização racional do material.............................................................. pág 30
- Estampo com disposição normal (Vertical) .......................................... pág 31
- Estampo com disposição e inversão de corte................................... pág 32
- Estampo de peças circulares....................................................................pág 34
E - Determinação do posicionamento da espiga.................................................... pág 36
- Método analítico..................................................................................... pág 36
- Método do baricentro do perímetro ................................................. pág 38
- Espiga de Fixação ............................................................................ pág 41
F - Construção e execução dos estampos de corte ...................................... pág 42
- Simples de corte ......................................................................................... pág 42
- Aberto com guia para o punção ...................................................pág 43
- Fechado com guia p/ o punção e p/ a chapa............................................ pág 43
- Aberto com colunas de guias ................................................................pág 43
- Aberto com extrator flutuante guiado por colunas ......................... pág 44
- Aberto com extrat. flut. e porta-punção guiado por colunas.................. pág 44
- Progressivo.............................................................................................. pág 45
G - Estampos progressivos de corte ............................................................... pág 45
H - Elementos construtivos dos estampos de corte ...................................... pág 48
- Limitadores de avanço............................................................................ pág 48
- Placas de choque .............................................................................pág 51
- Punções ......................................................................................... pág 52
- Porta-punção ................................................................................... pág 54
- Régua de Guia da Fita............................................................................ pág 54
- Apoio da tira ......................................................................................... pág 56
- Placa Guia ......................................................................................... pág 56
- Fatec - So - Tecnologia de estampagem -
- 3 -
- Molas...................................................................................................... pág 57
I- Matrizes ...................................................................................................... pág 59
- Características geométricas ............................................................... pág 59
- Cálculo da vida útil e espessura do talão ..................................... pág 59
- Cálculo da espessura da matriz ...................................................pág 60
- Cálculo da espessura da parede entre furos ..................................... pág 61
- Materiais para punções e matrizes.......................................................... ........... pág 61
3- OPERAÇÕES DE DEFORMAÇÃO
3.1- Dobra ................................................................................................................... pág 62
A - Cálculo da força de dobramento ................................................................pág 62
B - Raio mínimo de dobra ............................................................................ pág 64
C - Retorno elástico ............................................................................................ pág 64
D - Cálculo do comprimento desenvolvido ...................................................pág 67
E - Dobras de perfil em “U” .............................................................................pág 70
- Força de dobramento s/ planificação de fundo....................................... pág 70
- Força de dobramento c/ planificação de fundo....................................... pág 70
- Força de dobramento c/ utilização de sujeitadores ........................ pág 71
E - Estampos de enrolar .............................................................................pág 75
3.2 - Repuxo...................................................................................................... ............ pág 75
A - Cálculo do diâmetro do blanque ............................................................... pág 76
- Método das igualdades entre as áreas..................................................... pág 76
- Método do baricentro do perímetro ...................................................pág 77
B - Repuxo em vários estágios............................................................................... pág 78
3.3 - Etapas do Repuxo ................................................................................................ pág 83
A - Análise do produto ......................................................................................... pág 83
B – Diâmetro do disco ......................................................................................... pág 83
C – Número de estágios ....................................................................................... pág 85
D – Força de Repuxo .......................................................................................... pág 85
E – Sujeitadores .................................................................................................. pág 86
F – Extratores ....................................................................................................... pág 86
G – Folga entre punções e matrizes .................................................................... pág 86
H – Componentes do primeiro repuxo ............................................................... pág 87
I – Componentes dos demais estágios de repuxo ................................................. pág 87
J – Guias Flutuantes ............................................................................................ pág 87
K – Escolha da Prensa – força total .................................................................... pág 87
4- FERRAMENTAIS DIVERSOS
4.1- Classificações das ferramentas.............................................................................. pág 88
4.2- Elementos Normalizados .............................................................................pág 90
5- EQUIPAMENTOS
5.1 – Prensas .......................................................................................................pág 92
A - Características das Prensas.............................................................................. pág 92
B - Escolha da Prensa Conveniente ............................................................... pág 93
C -Dispositivos de Proteção ............................................................................ pág 93
D - Esquema de Repuxo e Estampo Progressivo.................................................. pág 95
5.2 – Dobradeira .......................................................................................................pág 95
5.3 - Automações em Prensas..................................................................................... pág 96
A - Desbobinador para Fitas ............................................................................ pág 96
B - Endireitadores para Fitas ............................................................................ pág 97
6 - SIMBOLOGIA DE ESTAMPAGEM ................................................................pág 103
7 - ROTEIRO DO PROJETO DE ESTAMPAGEM .................................................... pág 104
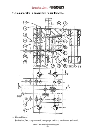
8 - COMPONENTES FUNDAMENTAIS DE UM ESTAMPO................................... pág 105
9 - TABELA DE TOLERÂNCIAS PUNÇÃO - MATRIZ ................................... pág 108
10 - SEQUÊNCIA DE CORTE DE PEÇAS INCLINADAS ................................... pág 110
12 – BIBLIOGRAFIA.................................................................................................... pág 111
- Fatec - So - Tecnologia de estampagem -
- 4 -
1- INTRODUÇÃO
Estampagem é o conjunto de operações com as quais sem produzir cavaco submetemos uma
chapa plana a uma ou mais transformações com a finalidade de obtermos peças com geometrias
próprias. A estampagem é uma deformação plástica do metal.
Os estampos são compostos de elementos comuns a todo e quaisquer tipos de ferramentas
(base, inferior, cabeçote ou base superior, espiga, colunas de guia, placa de choque, placa guia,
parafusos e pinos de fixação, e outros) e por elementos específicos e responsáveis pelo formato da
peça a produzir (matriz e punções).
Veja na figura ao lado a nomenclatura:
01-Espiga
02-Cabeçote ou Base Superior
03-Placa de choque
04-Porta Punção
05-Punção
06-Colunas de guia
07-Buchas
08-Pinos de fixação
09-Parafusos
10-Extrator
11-Guia das chapas
12-Matriz
13-Base inferior
Outra definição dá-se por processos de conformação mecânica, realizado geralmente a frio, que
compreende um conjunto de operações, por intermédio das quais uma chapa plana é submetida a
transformações por corte ou deformação, de modo a adquirir uma nova forma geométrica.
1.1 - Operações de corte
• Corte
• Entalhe
• Puncionamento
• Recorte
• Transpasse
Corte – Quando há separação total do material.
Entalhe – Quando há corte sem separação total.
- Fatec - So - Tecnologia de estampagem -
- 5 -
Puncionamento – É a obtenção de figuras geométricas por meio de punção e matriz através de
impacto.
Recorte – É a operação de corte realizada pela segunda vez.
- Fatec - So - Tecnologia de estampagem -
- 6 -
Transpasse – É a operação de corte associada à operação de deformação (enrijecimento em chapas
muito finas).
Exemplos: fuselagem de aviões, painéis de automóveis, brinquedos, eletrodomésticos, etc.
1.2 - Operações de deformação
• Dobramento
• Repuxo
• Extrusão
• Cunhagem
• Forjamento à frio
Dobramento - É a mudança de direção da orientação do material.
Repuxo - Obtenção de peças ocas a partir de chapas ou placas planas devido à penetração do material
na matriz forçada pelo punção (Ex. lataria de automóvel, copo de filtro de óleo, etc).
- Fatec - So - Tecnologia de estampagem -
- 7 -
Extrusão - Deformação do material devido a esforços de compressão (Ex. vasos de pressão, cápsula
de bala de revolver, tubo aerossol, extintores).
Utilização de vanguarda – caixilharia, tubos sem costura, tubos de pasta de dente, cápsculas de
armamentos, etc.
Cunhagem - Obtenção de figuras em alto ou baixo relevo através de amassamento do material
(ex. moedas, medalhas, etc )
Forjamento à frio – obtenção de formatos que alteram drasticamente a geografia do blanque, Ex:
cabeças de parafusos , esferas (processo inicial), calibragem (operação de redução de espessura do
material após repuxo),etc.
1.3 - Generalidades dos Metais
O trabalho dos metais em chapas é o conjunto de operações a que se submete a chapa para
transformá-la em um objeto de forma determinada. A extensão deste método de trabalho é devida:
• Capacidade de Produção
• Baixo preço de Custo
• Intercambiabilidade
• Leveza e Solidez das Peças Obtidas
As possibilidades deste sistema de trabalho foram melhoradas e aumentadas devido:
À melhora das qualidades:
a) do material a ser trabalhado;
b) dos materiais utilizados para fabricar as ferramentas;
c) ao estabelecimento de dados e normas técnicas cada vez mais precisas.
Na origem deste método estava baseado na prática adquirida e no empirismo. As ferramentas eram
fabricadas nas oficinas sem intervenção de qualquer assistência técnica. Atualmente a maioria das
oficinas possui um escritório técnico (engenharia) para estudos de ferramentaria.
Indústrias inteiras nasceram do mencionado processo de trabalho. As aplicações deste método de
fabricação de peças encontram-se nos setores mais variados, desde brinquedos até material de
transporte entre muitos outros.
- Fatec - So - Tecnologia de estampagem -
- 8 -
A - Operações no Trabalho dos Metais em Chapas
As diferentes operações a que é submetido o metal, na matriz, podem ser subdivididas em duas
categorias:
1 – Separação da matéria;
2 – Modificação da forma do material.
A primeira categoria abrange todas as operações de corte: cisalhar, puncionar, recortar as sobras,
corte parcial, cortar, cortar na forma, repassar.
Na segunda categoria encontram-se:
a) Modificação simples da forma: Curvar, Dobrar, Enrolar totalmente, enrolar os extremos,
aplainar, estampar;
b) embutir e repuxar
B - Os Metais em Chapas
A maioria dos metais pode ser trabalhada sob forma de chapas. Nesta apostila, nos limitaremos á
citar os principais metais utilizados:
• Aço;
• Cobre;
• Alumínio;
• Níquel e suas ligas;
• Zinco;
• Metais Preciosos.
C - Fabricação dos Metais Laminados
Os metais laminados se apresentam sob forma de:
- Chapas: chapas retangulares de dimensões: 700 x 2000 - 850 x 2000 - 1000 x 2000 etc. Que são
posteriormente recortadas em forma de Tiras, conforme a necessidade da produção.
- Fitas : Laminado metálico de 500 mm de largura máxima e espessura máxima de 6 mm. As
fitas se apresentam em forma bobina.
O comprimento da fitas enrolada varia conforme dimensões e permitem alimentação contínua.
As chapas e fitas são obtidas por laminação a quente e a frio, a partir de lupas (“blooms”) ou
placas. Denomina-se lupa (“bloom”) um semi-produto de secção quadrada, de 115 a 300 mm e
comprimento de 400 mm, o peso de um “bloom” é. Aproximadamente, 450 Kg.
Placa é o semi-produto de secção retangular (largura de 200 a 30 mm, espessura de 45 a 70 mm,
com um comprimento aproximado de 1m).
A partir da placa, as chapas são obtidas submetendo-se a matéria às seguintes operações:
1ª) Reaquecimento da Placa;
2ª) Desbastamento ou laminação a quente, até uma espessura de 4 a 5 mm;
3ª) Decapagem e enxaguadura das chapas grossas obtidas, colocando-as em pacotes formados por 3
chapas separadas por camadas de carvão de madeira, para evitar a soldagem;
4ª) Reaquecimento dos Pacotes;
5ª) Laminação das chapas grossas e acabamento no trem de laminação (a quente);
6ª) Cisalhamento das chapas e aplainamento a frio;
7ª) Recozimento de Normalização em caixa (930ºC);
8ª) Decapagem, Lavagem, Limpeza com escovas e Secagem;
- Fatec - So - Tecnologia de estampagem -
- 9 -
9ª) Polimento na Laminadeira, a frio, 2 a 3 passadas;
10ª) Segundo recozimento em caixa (600 a 650ºC);
11º) Laminado ligeiro a frio “skin pass”, que deixa uma superfície polida e provoca um leve
endurecimento superficial da chapa. Este tratamento evita adelgaçamentos quando se efetua o
embutimento.
12ª) Aplainado na máquina de cilindros;
13ª) Inspeção, escolha, lubrificação, empacotamento. Nas laminadeiras modernas, estas diversas
operações são feitas em série.
As chapas obtidas por laminação a frio devem ter uma espessura regular e um perfeito acabamento
superficial.
Para obter tais resultados é indispensável que os lingotes utilizados para a fabricação de “blooms”
e placas estejam isentos de defeitos, pois estes se transmitirão à chapa.
Estes defeitos são principalmente:
1) bolhas: furos produzidos na chapa, por inclusão de gás;
2) picadas: bolhas muito pequenas e muito numerosas; Estes defeitos, tornados mais ou menos
invisíveis, ao laminar, podem, após a decapagem, dar chapas arqueadas ou picadas;
3) bolsadas: vácuo central, criado pela contração; exige a eliminação das extremidades do lingote
antes da laminação;
4) fendas: produzidas durante o resfriamento do lingote ou devido a um forjado a tempeatura
muito baixa (defeito grave, difícil de se descobrir).
D - Características dos Metais em Chapas
CARACTERÍSTICAS DOS METAIS EM CHAPAS
Material
Carga de
Ruptura
(Kgf/mm
2
)
Alonga-
mento
(%)
Profundidade
Ericksen
(mm)
Pressão "p"
do sujeitador
(kgf/cm
2
)
Aço para corte (Thomas) 36 20 9 28
Aço de embutimento 33 24 10 25
Aço de embutimento Profunda 35 26 10,4 24
Aço para carroçarias 36 25 10,6 22
Aço-siliício 48 - - -
Aço inoxidável (18/8) 55 23 13 20
Chapa fina estanhada 32 20 9,5 30
Cobre 23 37 12 20
Bronze de estanho 45 10 10 25
Bronze de alumínio 35 40 11,5 20
Latão Lt 72 30 45 14,5 20
Latão Lt 60 a 63 doce 33 45 13,5 22
Latão Lt 60 a 63 semiduro 39 25 12 22
Zinco 13 56 8 12
Alumínio doce 9 25 10 10
Alumínio semiduro 12 8 8,5 12
Alumínio duro 15 5 7 15
Duralumínio doce fund. 20 19 10 10
Duralumínio laminado a frio 40 12 8 12
Níquel 47 45 12 20
Nota: Os valores indicados são valores médios.
- Fatec - So - Tecnologia de estampagem -
- 10 -
E - Características das Chapas
Para efetuar as distintas operações a que está sujeito o metal e, principalmente o repuxo, é
necessário que este seja homogêneo, maleável, dúctil, com grão suficientemente fino e com um bom
acabamento superficial.
As chapas caracterizam-se por:
a) sua resistência à ruptura (expressa em kgf/mm2
);
b) seu limite de elasticidade (expresso em kgf/mm2
);
c) seu alongamento em %;
d) sua dureza superficial (Brinel-Rockwell, etc.);
e) sua profundidade de embutido (Ericksen-Guilery).
F - Verificações das Chapas
Ao receber o material pedido, é preciso ter certeza de que o mesmo obedece às prescrições
exigidas.
As chapas devem ser verificadas conforme dentro dos limites de tolerância especificadas no pedido
e normas. Essas verificações serão efetuadas nas:
a) dimensões
- comprimento;
- largura;
- espessura.
b) características mecânicas
Verificação das Qualidades Mecânicas:
- Ensaio de Tração;
- Ensaio de Dureza;
- Dureza Rockwell;
- Dureza Shore.
c) qualidades tecnológicas
- Ensaio de Dobra;
- Ensaio de Embutição;
- Máquina Ericksen;
- Máquina Guillery.
Eventualmente poderão ser realizados ensaios químicos (ensaio macrográfico e ensaio
micrográfico). Estas verificações são feitas geralmente tomando de um lote de chapas algumas delas
para que sejam verificadas. Se as chapas forem perfeitas, o lote pode ser aceito.
- Fatec - So - Tecnologia de estampagem -
- 11 -
- Fatec - So - Tecnologia de estampagem -
- 12 -
2 - OPERAÇÕES DE CORTE
2.1- Corte com tesoura guilhotina
A - Força de corte em tesoura guilhotina.
Fc = Ac x τcis
Onde Fc = Força de Corte
τcis = Tensão de cisalhamento do material (kgf/mm²)
Ac = Área de corte (secção resistiva de corte) = l.e
l = comprimento de corte ( mm)
e = espessura de corte (mm)
- Fatec - So - Tecnologia de estampagem -
- 13 -
B - Fases do corte em tesoura guilhotina.
1ª Fase: Deformação Plástica
Obs: a folga excessiva das facas de corte pode conduzir em quebra da ferramenta de corte.
2ª fase: Cisalhamento
Obs: Para materiais mais moles, se utilizam facas de corte com ângulos de corte menores.
- Fatec - So - Tecnologia de estampagem -
- 14 -
3ª Fase: Ruptura
Características da seção de corte
Após o corte ,o material apresenta,no perfil do corte,três faixas bem distintas :
Deformação: Região 1
Um canto arredondado, no contorno em contato com um dos lados planos da chapa, e que
corresponde à deformação do material no regime plástico. Quanto mais duro for o material menor será
esta região.
Cisalhamento: Região 2
Uma faixa brilhante, ao redor de todo o contorno de corte,com espessura quase constante, e que
corresponde a um cisalhamento no metal cortado. Também é menor para materiais mais duros.
Ruptura: Região 3
Uma faixa áspera, devido à granulação do material,levemente inclinada que corresponde ao
trecho onde ocorreu o destacamento,visto que a área útil resistente vai diminuindo até que se dê a
separação total das partes.
Comentários:
Maiores ângulos das facas Para materiais mais duros
Material mole maior cisalhamento
Material duro maior ruptura
Material mole Provoca abrasão na superfície da ferramenta levando ao rápido desgaste
C - Tesoura guilhotina com facas paralelas.
- Fatec - So - Tecnologia de estampagem -
- 15 -
Fc = Ac x τcis
Onde: Fc = Força de Corte
τcis = Tensão de cisalhamento do material (kgf/mm²)
Ac = Área de corte (secção resistiva de corte) = l .e
l = comprimento de corte ( mm)
e = espessura de corte (mm)
Exercício:
Determinar qual é a força de corte (Fc) necessária para cortar uma chapa em uma guilhotina de facas
paralelas.
l = 30cm
e = 3mm
τcis = 30kgf/mm²
D - Tesoura guilhotina com faca inclinada.
Neste equipamento observa-se nas tiras muito finas um fenômeno conhecido como efeito “hélice”
em que a chapa tende a se enrolar.
Esta construção necessita um curso um pouco maior devido ao desalinhamento sendo isto uma
limitação.
e_ = tg λ (1)
x Ac = e² (3)
2.tg.λ
Ac = e.x (2)
2
Fc = Ac. τcis Fc = e².τcis (4)
2.tg.λ
- Fatec - So - Tecnologia de estampagem -
- 16 -
Onde: Ac = Área de corte
e = Espessura da chapa
λ = Inclinação da faca em graus
Fc = Força d corte
τcis = Tensão de cisalhamento da chapa
Exercício:
Determinar qual é a força de corte (Fc) necessária para cortar uma chapa em kgf com uma guilhotina
de facas inclinadas.
l = 30cm
e = 3mm
λ = 8°
τcis = 30 kgf / mm²
E - Condição de máxima inclinação das facas.
2 Fat ≥ Ft (1)
P = FN . cos λ (2) Obs : Valores típicos de λ = de 8° a 10°
Ft =FN . sen λ (3)
Fat = P. µ (4)
.·. de (1) e (4)
2 Fat = 2P. µ
.
·. 2 P. µ ≥ Ft
2 FN.cos λ . µ ≥ FN.sen λ
2cos λ . µ ≥ sen λ
2 µ ≥ tg λ (5)
- Fatec - So - Tecnologia de estampagem -
- 17 -
Onde: Fat = Força de Atrito
Fn = Força Normal
Ft = Componente Horizontal da Força Normal
Fc = Força d corte
µ = Coeficiente de atrito
Exercícios:
1- Determinar qual é a máxima inclinação das facas para a mesma chapa do caso anterior, porém,
considerando faca inclinada, onde:
µ = 0,15 (aço/alumínio).
2 - Uma indústria deseja comprar uma tesoura guilhotina para cortar chapas de aço, cobre e
alumínio. Determinar a capacidade da tesoura e o ângulo de inclinação das facas, sabendo-se que as
espessuras máximas das chapas são:
Aço – 1” τcis = 30 kgf / mm² µ = 0,2 (aço / aço)
Cobre – 1 1/2” τcis = 20 kgf / mm² µ = 0,11 (aço / cobre)
Alumínio - 2” τcis = 17 kgf / mm² µ = 0,15 (aço / Al)
Cálculo da inclinação da faca
Aço Cobre Alumínio
Cálculo da força de corte
Aço Cobre Alumínio
- Fatec - So - Tecnologia de estampagem -
- 18 -
F - Geometria de corte das facas.
Particularidades :
Um ângulo menor de β implica em redução na resistência da faca.
A potência requerida aumenta para maiores ângulos de β.
Ângulos típicos:
β = 77 a 85 ° γ = 0 a 10° α = 0 a 6° Σαβγ = 90°
G - Folga entre as facas da guilhotina.
Folga = Espessura
25
Obs : Folgas grandes podem provocar a quebra das facas.
Folgas pequenas provocam o rápido desgaste das arestas de corte.
2.2 – Puncionamento
É uma operação utilizada para se efetuar o corte de figuras geométricas por meio de punção e matriz
por impacto.
(O conjunto de ferramentas que executa operações de corte em série é chamado de estampo
progressivo de corte.)
- Fatec - So - Tecnologia de estampagem -
- 19 -
A - Força de corte no puncionamento
Fc = Ac x τcis
Fc = Força de corte
Onde τcis = Tensão de cisalhamento do material (kgf/mm²)
Ac = Área de corte (secção resistiva de corte) = l . e
l = comprimento de corte ( mm) (Perímetro)
e = espessura de corte (mm)
Neste caso:
Ac = área do perímetro de corte = π . d . e
Fc = π . d . e . τcis
B - Folga entre punção e matriz
Segundo Oehler: (f = D - d)
____
f/2 = 0,005 . e . √ τcis p/ e ≤ 3 mm
___
f/2 = (0,010.e - 0,015) . √τcis p/ e >3mm
e = espessura da chapa (mm)
τcis = tensão de cisalhamento ( kgf/mm²)
Obs : Folgas excessivas provocam rebarbas na peça.
Folgas pequenas provocam desgaste rápido das arestas de corte.
- Fatec - So - Tecnologia de estampagem -
- 20 -
Regra de corte :
Peça recortada - Matriz com Ø nominal (mínimo)
Furo estampado - Punção com Ø nominal (máximo)
Exercício:
Determinar as dimensões dos punções e matrizes para estampagem da arruela abaixo.
Calcular a força de corte e esquematizar o ferramental.
Material : Aço SAE 1020 τcis = 28 kgf/mm²
Resolução:
Para o furo estampado:
Ø Matriz Ø Punção (Nominal)
Para o diâmetro externo recortado:
Ø Matriz (Nominal) Ø Punção
Calculo da Força de Corte:
Esquematizar o Ferramental:
- Fatec - So - Tecnologia de estampagem -
- 21 -
C - Estudo de Lay out das peças na tira para Baixa produção (pequenos lotes)
( Cálculo de espaçamento entre peça e bordas)
S= 0,4e + 0,8 mm B ≤ 70mm ; e ≥ 0,5
S= 2 – 2e B ≤ 70mm ; e < 0,5
S= 1,5 (0,4e + 0,8 mm) B ≥ 70mm ; e ≥ 0,5
S= 1,5 (2 – 2e) B ≥ 70mm ; e < 0,5
- Utilização racional do material
A disposição das peças na tira deve levar em conta:
• Economia do material.
• Forma e as dimensões do material a empregar.
• Sentido de laminação, especialmente para as peças que devem ser dobradas.
A economia do material é o aspecto mais importante, que justifica os cálculos para assegurar uma
utilização racional do material.
A determinação do intervalo ou espaço a deixar entre as duas peças e nos cantos da chapa varia
conforme as dimensões da peça e espessura do material.
Adota-se geralmente:
Porcentagem de utilização da chapa
% Utilização = Ap.n x 100
Ac
Onde : Ap = Superfície total da peça em mm².
n = número de peças por chapa.
Ac = Superfície total da chapa em mm².
- Fatec - So - Tecnologia de estampagem -
- 22 -
Peças retangulares
Exemplo:
Determinar as diferentes disposições sobre a tira possíveis para cortar a peça acima. Utilize chapa de
aço padronizada de 2000x1000x1.
Calcular:
• Passo (ou avanço).Largura da tira.
• Número de peças /tira.
• Número de tiras /chapa.
• Número de peças / chapa.
• % de Utilização da Chapa
- Estampo com disposição normal (linha de centro em 90° com a borda)
Cálculo de S : (S)
Cálculo do Passo: (a)
Cálculo da largura da tira: (B)
- Fatec - So - Tecnologia de estampagem -
- 23 -
Tiras de 2 metros comprimento (1) Tiras de 1 metro de comprimento (2)
Número de tiras de 2 metros de
comprimento por chapa: (ntc1)
Número de peças por tira: (npt1)
Número de peças por chapa: (npc1)
% de Utilização: (%U1)
Número de tiras de 1 metro de
comprimento por chapa: (ntc2)
Número de peças por tira: (npt2)
Número de peças por chapa: (npc2)
% de Utilização: (%U2)
- Fatec - So - Tecnologia de estampagem -
- 24 -
- Estampo com disposição normal (horizontalmente)
Cálculo de S : (S)
Cálculo do Passo: (a)
Cálculo da largura da tira: (B)
Tiras de 2 metros comprimento (1) Tiras de 1 metro de comprimento (2)
Número de tiras de 2 metros de
comprimento por chapa: (ntc1)
Número de peças por tira: (npt1)
Número de peças por chapa: (npc1)
% de Utilização: (%U1)
Número de tiras de 1 metro de
comprimento por chapa: (ntc2)
Número de peças por tira: (npt2)
Número de peças por chapa: (npc2)
% de Utilização: (%U2)
- Fatec - So - Tecnologia de estampagem -
- 25 -
- Estampo com disposição e inversão de corte
Cálculo de S : (S)
Cálculo do Passo: (a)
Cálculo da largura da tira: (B)
Tiras de 2 metros comprimento (1) Tiras de 1 metro de comprimento (2)
Número de tiras de 2 metros de
comprimento por chapa: (ntc1)
Número de peças por tira: (npt1)
Número de peças por chapa: (npc1)
% de Utilização: (%U1)
Número de tiras de 1 metro de
comprimento por chapa: (ntc2)
Número de peças por tira: (npt2)
Número de peças por chapa: (npc2)
% de Utilização: (%U2)
- Fatec - So - Tecnologia de estampagem -
- 27 -
- Peças Circulares
Estampos com 1 carreira de corte
B = largura da tira
a = avanço
n = número de peças
B = D + 2S
a + D + S
Estampos com 2 carreiras de corte ( Zig-zag)
B= (D+S).sen60°+D+2S
a + D + S
n = [(l - (D + S) . sen30° + D + 2S)] . 2 + 2
D + S
- Fatec - So - Tecnologia de estampagem -
- 28 -
Estampos com 3 carreiras de corte (Zig-Zag Duplo)
B= (2D+2S).sen60°+D+2S
A+D+S
n = { [l-(D+2S)].3} + 2
D+S
Exemplo:
Determinar o número de peças circulares com diâmetro de 80 mm que se pode obter de uma chapa
2000x1000x1 mm considerando:
Estampo com 1 carreira
Estampo com 2 carreiras
Estampo com 3 carreiras
Resolução:
S= 1,5(0,4e+0,8) mm
S= 1,5.0,4+0,8 = s+1,8o
mm
a =D+S
a =80+1,8
a =81,8 mm
Cálculo de B para 1 carreira
B= D+2 s
B= 80+2.1,8
B= 83,6 mm
Cálculo de B para 2 carreiras
B=(D + s).sen60°+D+2S
B=(80+1,80)sen 60º+80+2.1,8
B= 154,5 mm
Cálculo de B para 3 carreiras
B= (2D+2S)sen60°+D+2S
B=(2.80+2.1,80)sen60°+80+2.1,80
B= 225,28 mm
- Fatec - So - Tecnologia de estampagem -
- 29 -
Cálculo do número de peças para 1 carreira
Para tiras de lt = 1000 mm 23 tiras
n = l – D + 2S +1
D+S
n = 1000-80+2.1,80 +1
80+1,8
n = 12,2. 23,9 :. n = 276 tiras
Para tiras de lt = 2000 mm 11 tiras
n = 2000-80+2.1,80 +1
80+1,8
n = 23,4+1 . 11,96 n = 264 peças
Cálculo do número de peças para 2 carreiras
Para tiras de lt = 1000 mm 12 tiras
n = [( l -(D+S).sen30° +D+2S) .2]+2
D+S
n = [(1000-(81,8.sen30° +80+2.1,8).2] +2
80+1,8
Cálculo do número de peças para 3 carreiras
Para tiras de lt=1000 mm 8 tiras
n ={[ n-(D+2S)].3} +2
D+S
n ={ [1000-(80+2.1,8)].3} +2
80+1,8
n = 35 . 8 n = 280 peças
Para tiras de lt = 2000 mm 4 tiras
n = 2000-(83,16) .3 +2
81,8
n = 72 . 4
n = 288 peças
Nota : usar chapa de B= 225,26x2000
3 carreiras
s =1,80 mm
- Fatec - So - Tecnologia de estampagem -
- 30 -
D - Estudo de Lay out das peças na Fita para Alta produção (Grandes lotes)
( Cálculo de espaçamento entre peça e bordas)
S= 0,4e + 0,8 mm B ≤ 70mm ; e ≥ 0,5
S= 2 – 2e B ≤ 70mm ; e < 0,5
S= 1,5 (0,4e + 0,8 mm) B ≥ 70mm ; e ≥ 0,5
S= 1,5 (2 – 2e) B ≥ 70mm ; e < 0,5
L = Largura da fita
B = Largura aproximada da fita apenas para efeito de cálculo do “S”
- Utilização racional do material
A disposição das peças na fita deve levar em conta:
• Economia do material.
• Forma e as dimensões do material a empregar.
• Sentido de laminação, especialmente para as peças que devem ser dobradas.
A economia do material é o aspecto mais importante, que justifica os cálculos para assegurar uma
utilização racional do material.
A determinação do intervalo ou espaço a deixar entre as duas peças e nos cantos da chapa varia
conforme as dimensões da peça e espessura do material.
Adota-se geralmente:
- Fatec - So - Tecnologia de estampagem -
- 31 -
Porcentagem de utilização da Fita
% Utilização = Ap.n x 100
Af
Onde : Ap = Superfície total da peça em mm².
n = número de peças no passo.
Af = Superfície total da fita em mm².
Peças retangulares
Exemplos:
Determinar as diferentes disposições sobre a fita possíveis para cortar a peça acima.
Calcular:
1- Passo (ou avanço).
2- Largura da Fita.
3- Área da Peça.
4- Área do Passo.
5- % de Utilização da Chapa.
- Estampo com disposição normal (linha de centro em 90° com a borda)
- Fatec - So - Tecnologia de estampagem -
- 32 -
Cálculo de S : (S)
S = 0,4 . E + 0,8 porque B< 70mm ; e > 0,5mm
S = 0,4 . 1 + 0,8
S = 1,2
Cálculo do Passo: (1)
Passo = 35 + 1,2
Passo = 36,2
Cálculo da largura da fita: (2B)
L = 1,2+50+1,2
L = 52,4
Área da peça: 750 mm²
Área do Passo: 36,2 * 52,4 = 1896,88 mm²
Porcentagem de utilização da Fita
% Utilização = 750.1 x 100 = 39,5%
1896,88
- Estampo com disposição e inversão de corte
Cálculo de S : (S)
S = 0,4 . E + 0,8 porque B< 70mm ; e > 0,5mm
S = 0,4 . 1 + 0,8
S = 1,2
Cálculo do Passo: (1)
Passo = 35 + 10+2x1,2
Passo = 47,4
Cálculo da largura da fita: (2B)
L = 1,2+50+1,2
L = 52,4
- Fatec - So - Tecnologia de estampagem -
- 33 -
Área da peça: 750 mm²
Área do Passo: 47,4 * 52,4 = 2483,76 mm²
Porcentagem de utilização da Fita
% Utilização = 750.2 x 100 = 60,4%
2483,76
Lay-out Otimizado para esta peça
Cálculo de S : (S)
S = 0,4 . E + 0,8 porque B< 70mm ; e > 0,5mm
S = 0,4 . 1 + 0,8
S = 1,2
Cálculo do Passo: (1)
Passo = 35 + 1,2
Passo = 36,2
Cálculo da largura da fita: (2B)
L = 1,2+50+1,2+10+1,2
L = 63,6 mm
Área da peça: 750 mm²
Área do Passo: 36,2 * 63,6 = 2303,32 mm²
Porcentagem de utilização da Fita
% Utilização = 750.2 x 100 = 65,1%
2303,32
- Fatec - So - Tecnologia de estampagem -
- 34 -
Peças Circulares
Estampos com uma carreira de corte (Corte Simples)
B = largura da tira
a = avanço
B = D +
a + D + S
Porcentagem de utilização da Fita
% Utilização = Ap.n x 100
At
Onde : Ap = Superfície total da peça em mm².
n = número de peças no passo.
At = Superfície total da fita em mm².
Estampos com 2 carreiras de corte
(Zig-Zag)
B= (D+S).sen60°+D+2S
a + D + S
n = [(l - (D + S) . sen30° + D + 2S)] . 2 + 2
D + S
Porcentagem de utilização da Fita
% Utilização = Ap.n x 100
At
Onde : Ap = Superfície total da peça em mm².
n = número de peças no passo.
At = Superfície total da fita em mm².
- Fatec - So - Tecnologia de estampagem -
- 35 -
Estampos com 3 carreiras de corte (Zig-Zag duplo)
B= (2D+2S).sen60°+D+2S
A+D+S
Exemplos:
Determinar o melhor lay-out para a produção de peças circulares com diâmetro de 80 mm em:
Estampo com 1 carreira
Estampo com 2 carreiras
Estampo com 3 carreiras
Resolução:
Cálculo para 1 carreira:
S= 1,5(0,4e+0,8) mm
S= 1,5.0,4+0,8 = s+1,8o
mm
a =D+S
a =80+1,8
a =81,8 mm
Área da Peça: (п * 80²) / 4 = 5026,54
Cálculo de L para 1 carreira
L= D+2 s
L= 80+2.1,8
L= 83,6 mm
Área do Passo: 81,8 * 83,6 = 6838,48
% Utilização = 5026,54 * 1 x 100 = 73,50%
6838,48
- Fatec - So - Tecnologia de estampagem -
- 36 -
Cálculo para 2 carreiras
L=(D + s).sen60°+D+2S
L=(80+1,80)sen 60º+80+2.1,8
L= 154,5 mm
Área do Passo: 81,8 * 154,5 = 12638,10
% Utilização = 5026,54 * 2 x 100 = 79,54%
12638,10
Cálculo de L para 3 carreiras
L= (2D+2S)sen60°+D+2S
L=(2.80+2.1,80)sen60°+80+2.1,80
L= 225,28 mm
Área do Passo: 81,8 * 225,28 = 18427,90
% Utilização = 5026,54 * 3 x 100 = 81,83%
18427,90
E - Determinação do posicionamento da espiga
– Método Analítico
Xg = P1.x1+P2.x2+P3.x3+P4.x4
(P1+P2+P3+P4)
Equilíbrio através do momento onde Pt = ΣPi de 1 a 4
XG = ΣPixi donde se deduz que
ΣPi
XG = ΣLixi onde Li = π .d (perímetro)
ΣLi
- Fatec - So - Tecnologia de estampagem -
- 37 -
XG = P1.X1+P2.X2+P3.X3
P1+P2+P3
P1 = L1.e.τcis
P2 = L2.e.τcis
P3 = L3.e.τcis
XG = e. τcis . (L1.X1+L2.X2+L3.X3)
e.τcis.(L1+L2+L3)
XG = ΣLi.Xi
ΣLi
YG = ΣLi.Yi
ΣLi
Ponto Xi Yi Li Li.Xi Li.Yi
1
2
3
Σ
ΣLi ΣXiLi ΣYiLi
d1 10
d2 12
d3 14
x1 10
x2 30
x3 50
y1 50
y2 30
y3 10
- Fatec - So - Tecnologia de estampagem -
- 38 -
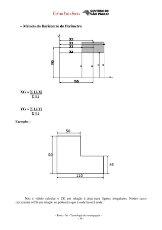
– Método do Baricentro do Perímetro
XG = Σ Li.Xi
Σ Li
YG = Σ Li.Yi
Σ Li
Exemplo :
Não é válido calcular o CG em relação à área para figuras irregulares. Nestes casos
calculamos o CG em relação ao perímetro que é onde haverá corte.
- Fatec - So - Tecnologia de estampagem -
- 39 -
Exemplo : Dividir sempre uma figura a ser puncionada em perímetros conhecidos localizando os
seus próprios centros de gravidade.
Centro de gravidade de curvas
- Fatec - So - Tecnologia de estampagem -
- 40 -
Exercício:
Determinar o CG do estampo :
Ponto Xi Yi Li Xi.Li Yi.Li
01
02
03
04
05
06
07
08
09
10
11
12
Σ
- Fatec - So - Tecnologia de estampagem -
- 41 -
XG = Σ Li.Xi =
Σ Li
XG =
YG = Σ Li.Yi =
Σ Li
YG =
Espiga de Fixação
A fixação da parte móvel do estampo no martelo da prensa é feita aplicando-se um pino
roscado, o qual denominar-se de espiga. A espiga é introduzida no furo existente no martelo e, por
intermédio de um parafuso, fixa-se o conjunto.
A espiga é um elemento de forma cilíndrica e o seu diâmetro, assim como o comprimento,
deverá ser de acordo com o furo do martelo já existente na prensa, onde será montado o estampo.
Geralmente, a espiga é constituída com um aço comum como, por exemplo, SAE 1010 ou 1020,
exceto em casos especiais, nunca receberá tratamento térmico.
Esta deve ser suficientemente robusta para poder resistir ao peso do móvel mais o esforço de
extração. Assim, em uma espiga, a sua parte mais fraca é o menor diâmetro, vamos desenvolvê-la
considerando o diâmetro do núcleo da rosca como o mais crítico.
O peso da parte superior é calculado sempre para este caso de uma maneira aproximada,
considerando-o até por estimativa. A letra “S” encontrada logo após a fórmula será o coeficiente de
segurança que adotaremos com sendo 2,5 a 3 para determinarmos a área do núcleo da rosca.
Depois que calcularmos a área do núcleo da rosca, podemos encontrar o diâmetro do mesmo
com a fórmula a seguir:
Obs: Alguns tipos de Ferramentas progressivas, de vários estágios e, ou de grande parte são fixadas
ao cabeçote superior através de grampos mecânicos (com parafusos)ou hidráulicas
- Fatec - So - Tecnologia de estampagem -
- 42 -
Obs.: Este é um modelo de espiga para estampos de pequeno e médio porte.
Dificilmente iremos calcular um diâmetro de núcleo que coincida com uma rosca normalizada, por
este motivo, podemos aumentá-lo até encontrar um diâmetro de rosca imediatamente superior.
F - Construção e execução dos estampos de corte
- Estampo simples de corte
Para corte sem muita precisão
Precisão de corte ± 0.2 mm
- Fatec - So - Tecnologia de estampagem -
- 43 -
- Estampo aberto com guia para o punção
- Estampo fechado com guias para o punção e apoio para a fita
- Fatec - So - Tecnologia de estampagem -
- 44 -
- Estampo com colunas de guias, extrator fixo e guia para fita.
- Estampo com extrator flutuante e porta - punção guiado por colunas
- Fatec - So - Tecnologia de estampagem -
- 45 -
3.6.7 - Estampo de Corte Progressivo (esquemático)
G - Estampos progressivos de corte
Obs.: não há retalho rebobinável
1º passo – corte do retalho lateral e marcação do passo
2º passo – corte dos furos internos.
3 º passo – corte do contorno externo com separação das peças.
- Estampo de Corte Progressivo (esquemático)
- Fatec - So - Tecnologia de estampagem -
- 46 -
Na figura acima tem-se o caso de aproveitamento dos dois punções laterais marcadores de
passo, como cortadores do retalho lateral, e um terceiro de forma, para separação das peças, e corte
do retalho que se forma entre elas.
No exemplo da figura abaixo tem-se o aproveitamento dos punções marcadores de passo
como cortadores de retalho lateral. Para o destacamento das peças utilizou-se um jogo de facas
paralelas. Neste caso não houve formação de retalhos entre as peças.
Como dissemos anteriormente, nem sempre se utiliza sistematicamente corte de retalho. É o
caso de se rebobinar a lâmina cortada. Este método de alimentação com material bobinado
subentende que se deseje alta produção, e que o material e a sua espessura conferem a lâmina uma
certa flexibilidade que permita o desenrolamento da bobina e o bobinamento do retalho obtido com
certa facilidade.
Neste caso, geralmente, as peças produzidas são de pequena dimensão. A alta produção nos
obrigaria a colocar um alimentador automático na prensa. A bobina, a fim de se tornar plana, nos
obrigaria a utilizar uma estreitadora de chapas. O esquema de conjunto seria então indicado pela
figura abaixo (esquema de um conjunto utilizado em alta produção).
Quando a espessura, a largura e o material da lâmina, forem tais que um bobinamento se torne
incomodo, passa-se a utilizar, ainda que com produção elevada, um sistema de tiras obtidas numa
tesoura guilhotina.
Corte utilizando uma faca para destacar a peça no final da seqüência
Obs.: Não há retalho rebobinável.
1 º passo – corte do retalho lateral e marcação do passo. corte do furo interno
2 º passo – corte do rasgo para completar a forma do furo interno.
3 º passo – passo morto.
4 º passo – separação das peças.
- Fatec - So - Tecnologia de estampagem -
- 47 -
Esquema de um processo utilizado em alta produção
A – bobina de material enrolado D – estampo
B – endireitadora de chapa E – bobina de retalho
C – alimentador automático (empurrando a fita)
C1= Alimentador automatico após a ferramenta (puxando a fita)
Obs: É usado apenas um alimentador . A opção C1 é utilizada quando a fita é extremamente fina ou quando
se deseja manter a integridade da fita de retalho para uso posterior. Apenas neste caso é utilizado o bobinador
“E”.Caso não seja usado o retalho podemos “pica-lo” através de uma pequena guilhotina, para facilitar o
descarte como sucata.
1° Passo – corte dos furos internos
2° Passo – corte do contorno
3° Passo – separação do retalho
vantagem – controle direcional
desvantagem - usinagem
(Pode fazer a peça em dois estágios)
1° Passo – corte dos furos internos
2° Passo – execução do recorte externo
3° Passo – corte do contorno e separação do retalho
- Fatec - So - Tecnologia de estampagem -
- 48 -
No segundo caso a solução mais indicada seria cortar o retalho em secções curtas. O terceiro caso
impossibilita alternativa a não ser armazenar as pontas e sobras em containeres.
Vem desta maneira que os estampos deverão ser providos, em alguns casos de elementos que
possibilitam o corte da lâmina em pequenos retalhos, com finalidade de facilitar o transporte e o
armazenamento. Tais elementos recebem uma construção típica conforme o tipo de peça com que
esteja lidando.
H - Elementos construtivos dos estampos de corte.
Limitadores de avanço
Para melhorar a produção é necessário que a prensa seja alimentada com continuidade e a
chapa colocada em disposição correta. Para isto, existem dispositivos simples e complexos,com
funcionamento manual ou automático. Eles limitam o avanço da fita a cada golpe da prensa.
Limitadores de Avanços Manuais:
Limitadores de pino fixo (pino stop)
Limitadores de pino móvel
Pino acionado manualmente
- Fatec - So - Tecnologia de estampagem -
- 49 -
Limitador acionado por mola
Limitador através de faca de avanço
- Fatec - So - Tecnologia de estampagem -
- 50 -
Limitador por entalhe lateral e bloqueio por mola
Limitadores centralizadores
- Fatec - So - Tecnologia de estampagem -
- 51 -
Balancim ou encosto oscilante
Avanços Automáticos
São dispositivos mecânicos ou pneumáticos que funcionam com movimentos sincronizados com
as prensas utilizadas para estampar.
– Placas de choque
Placa de Choque Inteiriça Placa de Choque Segmentada
Para impedir que a punção penetre no cabeçote, coloca-se entre a cabeça do punção e o
cabeçote do estampo, uma placa de aço temperado com espessura máxima de 5 mm a 8mm. Outra
função é a distribuição da pressão da punção.
O Material é normalmente utilizado o aço SAE 1045 e levando um tratamento térmico não
obrigatório de HRC 45-48, não havendo necessidade de maior dureza para não torná-la quebradiça.
Podemos usar também uma única placa com o mesmo dimensionamento (largura e
comprimento) do porta punção, por haver um menor tempo de usinabilidade e/ou por motivos de
punções com geometrias mais complexas, para isso chamamos de placa de choque inteiriça.
- Fatec - So - Tecnologia de estampagem -
- 52 -
Dimensionamento:
A placa de choque será empregada sempre que a pressão específica em qualquer punção for
superior a P = 4 kgf/mm2
. Recomenda-se analisar o menor punção.
Cálculo de Pe (pressão específica):
Pe = Fc
Acp
Onde:
Fc= Força que atua no punção (Kgf)
Pe = Pressão específica dimensionada para a placa = 4 kgf/mm²
Acp = Área da cabeça do punção (mm²)
- Punções
Tipos e forma de fixação:
Quanto a aresta de corte:
O tipo mais utilizado é o retificado em esquadro (1); é o mais barato e sempre usado para corte
de chapas com e ≤ 2mm.
- Fatec - So - Tecnologia de estampagem -
- 53 -
Os punções de Ø relativamente grande são comumente feitos côncavos ou com fio de corte
inclinado (2,3,4,5).
O tipo 6 é usado para trabalhos muitos grosseiros ou em forjaria, para corte a quente.
Os punções tipo faca (7,8,9) são usados para materiais não metálicos ou fracos, e trabalham sem
matriz, usando como base uma placa de borracha ou madeira topo.
Verificações dos punções
Verificação 1: Resistência à compressão
Em geral se o diâmetro da punção for bem superior à espessura da chapa, não há necessidade de se
fazer a verificação da resistência de compressão.
Para diâmetros próximos a espessura da chapa pode-se utilizar a seguinte regra prática:
Para materiais com σr ≤ 40 Kgf/ mm2 - dmin = e
Para materiais com σr > 40 Kgf/ mm2 - dmin = 1,5e
Verificação 2: Flambagem
L – Comprimento livre máximo
Onde: E – Módulo de elasticidade (aço 21000 kgf/mm²)
J – Menor momento de inércia da seção
Fc – Força de corte (kgf)
Comprimento dos punções (usual) 50 a 80 mm
Alguns Valores de J
Jmin = πd4
64
Jmin = _a4
12
Jmin = b.h3
12
- Fatec - So - Tecnologia de estampagem -
- 54 -
Porta-punção
Na fixação conveniente dos punções pequenos, geralmente são utilizadas placas
denominadas de porta-punção, confeccionadas comumente de aços SAE 1010 ou 1020.
A espessura do porta-punção é o fator primordial, sendo que podemos considerá-la no
mínimo 0,25 do comprimento do punção, independentemente da espessura, o punção deve ter apoio
lateral suficiente e sua localização no porta-punção varia conforme a peça a ser confeccionada.
Com referência à ajustagem dos punções no porta punção, devemos observar que o punção
deve ter um ajuste perfeito, evitando qualquer movimento. Na parte da cabeça do punção podemos
deixar a medida de 1mm de diâmetro maior que o diâmetro da cabeça do punção d2, e o encaixe que
vai receber a cabeça do punção de medida ex: 4,2-0,1
, deve ser usinado com medida 4,1-0,05
,
retificando-se o excesso deixado para obter um ajuste uniforme entre o punção e o porta-punção.
Quando o contorno for de perfil cilíndrico podemos usinar o encaixe do corpo do punção
com “N7” e, provavelmente, o punção terá “h6”.
Quando o contorno do punção não for de perfil cilíndrico podemos usinar o encaixe do
corpo do mesmo com “H7” e se acrescenta um sistema de travamento, caso não possua cabeça. Esta
mesma tolerância pode ser empregada em punções cilíndricos, desde que sejam recambiáveis.
Régua de Guia da Fita
As réguas de guia ou guias laterais do produto tem como objetivo guiar convenientemente a
tira do produto dentro do estampo, sendo montadas numa distância entre si igual à largura da tira
mais um mínimo de folga que possibilite um deslizamento regular da tira que geralmente é cerca de
20% da espessura da chapa.
Jmin = π(D4
- d4
)
64
Base Superior
Porta-Punção
- Fatec - So - Tecnologia de estampagem -
- 55 -
O material das réguas poderá ser SAE 1045 ou VND, sendo aconselhável o tratamento
térmico para HRC 45-48.
O dimensionamento das réguas de guia far-se-á de acordo com o que se deseja, por exemplo,
para a largura da régua dever-se-á levar em consideração o diâmetro da cabeça do parafuso de
fixação, sendo que esta largura deverá ter no mínimo 2,5 vezes este diâmetro já referido, e quando
tiver encosto móvel é determinada conforme o apoio deste.
O comprimento também deverá ser calculado segundo o bom senso, pois a régua deverá se
suficientemente comprida para guiar a tira. Recomendam-se guias com comprimento 2 vezes
superior à largura da tira. Esse dimensionamento seria a partir do punção até à parte da entrada da
tira.
A espessura da régua de guia é uma das partes mais delicadas deste elemento, porque
devemos considerar que, em um estampo fechado o intervalo existente entre a guia do punção e a
matriz deve ser considerado para espessura acima de 0,5 mm e que este intervalo será duas vezes a
espessura mínima da chapa menos 0,2 a 0,3, isto para evitar que possam entrar duas peças de uma
só vez no estampo e garantir também que não haja ruptura de punção.
Esta altura obedece as seguintes dimensões:
p/
p/
Em geral:
p/
p/
p/
p/
A abertura “A” costuma-se fazer:
Para tiras e chapas:
p/
p/
Para ferro chato:
p/
- Fatec - So - Tecnologia de estampagem -
- 56 -
p/
e = espessura da chapa
a = largura da tira
Dimensionamento da régua em relação ao comprimento
Espessura da régua (mm) Comprimento da régua (mm)
8 até 200
10 até 300
12 até 400
Caso esta régua seja temperada e acima de 400 mm de comprimento, é conveniente dividi-la
em segmentos para evitar empenamentos durante tratamento térmico.
Apoio da tira
É uma simples placa fabricada em material comum SAE 1010, fixada com parafuso não
sendo necessário colocar pinos. Quanto a usinagem, pode ser feita somente do lado em que a tira do
produto seja apoiada.
Geralmente tem largura igual ao somatório entre os elementos, régua guia e a largura do
produto. A espessura em geral é igual a 8 mm. O comprimento é determinado pelas réguas de guia.
Em estampos cujo produto tem espessura fina aplicamos um tipo de apoio formando um
túnel, que seria o apoio normal, e uma placa montada na parte superior, dando o intervalo nesta
montagem de 2 espessuras mínimas do produto.
Placa Guia
A placa de guia geralmente é confeccionada de aço SAE 1020 não havendo necessidade de
tratamento térmico. Sua espessura deve-se relacionar com o comprimento do punção sendo que, em
geral, aplicamos:
h = L
4
A distância da placa guia á matriz, ou seja, o intervalo (i), depende da espessura da peça e da
régua guia como antes já foi observado.
- Fatec - So - Tecnologia de estampagem -
- 57 -
Quando cortamos uma peça e não a retalhamos, com o decorrer das operações de corte o
retalho tende a enrolar, e para evitar isso venha a interferir no andamento do retalho, aliviamos
conforme o indicado.
O guia do punção pode ser simplificado utilizando enxertos, quando se tem punções com
perfil complexo ou quando se deseja reduzir a área que irá tocar a peça, deixando a parte mais
trabalhosa em usinagem para o enxerto.
A placa guia normalmente é fixa com o conjunto inferior do estampo e tem a utilidade
também de extrair o punção de dentro do furo cortado na operação. Temos também placas iguais á
placa guia, somente que são móveis e as denominaremos de sujeitadores prensa-chapas ou ainda de
extratores móveis, sendo que escolhemos a denominação conforme a função do elemento.
Molas
Para se calcular as molas, devemos conhecer a força de extração. Esta força é aquela que
tem o objetivo de extrair o punção de dentro do furo cortado, pois, quando furamos uma
determinada peça o furo pode prender o punção.
Para o entendimento, a extração é determinada com os pontos em que se dará interferência
na extração.
Então consideremos a força de extração (Fe):
- Fatec - So - Tecnologia de estampagem -
- 58 -
Para cálculo do curso de trabalho desta, devemos considerar a “Fe” no ponto exato, onde
temos o ponto máximo de penetração do punção na matriz “c” que, geralmente, deixamos com
1mm. Também encontramos o ponto máximo de penetração do punção no extrator “b” que também
costumamos deixar 1 mm e finalizando temos o ponto onde a força de extração atinge o máximo
“a”, neste ponto, as molas devem ter força maior ou igual à força de extração.
Portanto, o curso de trabalho “f” das molas será a soma dos respectivos pontos, sendo que
no lugar de “a” acrescentamos a espessura da chapa, assim:
A mola ainda deve ser pressionada de 0,5 a 1 mm para que já inicie com uma pré-
compressão. Os cálculos devem ser verificados rigorosamente se as molas atingem o curso de
trabalho “f” mais a pré-compressão, assim como devem ser observados com o mesmo rigor, se no
ponto “a” tiverem força suficiente para extrair a peça.
Para determinarmos a capacidade da prensa devemos somar a “Fc” a todas as cargas das
molas quando estão totalmente comprimidas e, no final desta somatória, acrescentamos um
coeficiente de segurança de 10 a 30%, dependendo da máquina.
Por outro lado, podemos adquirir as molas no mercado, pois os fabricantes normalmente nos
informam todas as referências, tais como Ø do arame, Ø da mola, carga que pode suportar, curso,
etc., tendo disponível no mercado uma enorme série para ser escolhida de acordo com a situação.
Para efeito de conhecimento, temos a seguir as formulas para os cálculos das molas.
Mola Quadrada Mola Redonda Mola Retangular
Onde:
- Fatec - So - Tecnologia de estampagem -
- 59 -
P = Força aplicada (Kp)
σt = Resistência prática do aço ao cisalhamento, cerca de 30 a 40 Kp/mm2
n = Número de espiras úteis
G = Módulo de elasticidade ao cisalhamento, cerca de 8000 a 10000/mm2
f = flecha, suportando a força P.
Portanto, a deformação do anel será “g” e a para molas a compressão
Logo
Para molas a tração:
I - Matrizes
Matrizes e punções constituem os elementos fundamentais das ferramentas. Na matriz está
recortado o formato negativo da peça a ser produzida. A matriz é fixada rigidamente sobre a base
inferida com parafusos, porta matriz ou outro meio, sempre de modo a formar um conjunto bem
sólido.
A matriz deverá ser confeccionada com material de alta qualidade e com acabamento finíssimo.
Características principais das matrizes de corte são:
• Ângulo de saída para facilitar o escoamento do material cortado.
• A folga entre punção e a matriz que é responsável pelo corte da peça desejada.
• Altura do talão determina nº de afiações possíveis.
Características Geométricas
- Fatec - So - Tecnologia de estampagem -
- 60 -
Cálculo da vida útil e espessura do talão
A altura do talão determina o nº de afiações possíveis na matriz
Em geral após o corte de 40 mil a 60 mil peças a matriz deve ser afiada. Cada afiação reduz
aproximadamente 0,15 mm da espessura da matriz
T= n º de peças x 0,15
40.000 a 60.000
T = espessura do talão
Espessura retirada numa afiação (média) = 0,15 mm
Expectativa de peças produzidas entre afiações = 30000 a 40000 peças
Nota: o talão t deve ter no máximo 12 mm. Tmáx =12 mm
Alturas recomendadas para o talão
T≤ 3,0.e para e‹1,5 mm
T≈ 1,5.e para e›1,5 mm
T= 1,0.e para e›6,0 mm
Cálculo da espessura da matriz
A força de punção se distribui ao longo dos gumes de corte da matriz, de forma tal que se
esta não tiver espessura suficiente, acabará
não resistindo aos esforços.
Espessura da Matriz:
F E
ton cm
kgf mm
- Fatec - So - Tecnologia de estampagem -
- 61 -
Cálculo da espessura da parede entre furos
D 3 - 6 6 - 12 12 - 20
X 6 10 13
F (ton) 10 15 20 30 50 90 120
E (mm) 16 16 22 28 34 40 46
C (mm) 9 - 10 12 - 13 14 - 15 17 - 18 21 - 23 29 - 30 34 - 35
C' (mm) 11 - 12 14 - 15 17 - 18 21 - 22 26 - 27 36 - 37 41 - 42
Y (mm)
2 a 3 . em OBS: Para matrizes inteiriças
ou encaixadas podemos
Z (mm) α . e (e = espessura da chapa em mm) tomar 0,8 . em
Para os valores de α, vide tabela abaixo:
Valores de α :
onde: p = perímetro de corte (mm); e = espessura da chapa (mm)
Materiais para punções e matrizes
Características:
1. Elevada resistência mecânica
2. Dureza elevada após tratamento térmico.
3. Resistência ao desgaste.
4. Resistência ao choque.
5. Boa temperatura e usinabilidade.
6. Indeformabilidade durante o tratamento térmico.
Recomendação de materiais para punção e matriz
Tratamento térmico
Para o tratamento térmico dos punções e matrizes deve-se consultar o catálogo do fabricante. A
dureza dos punções deve ser a princípio na faixa de 56 a 62 HRC após o revenimento.
Recomendações de projetos para punção e matriz
Para que não haja problemas de concentração de tensões durante e depois do tratamento térmico
deve-se seguir as seguintes recomendações :
1. Evitar cantos vivos ou raios de arredondamento muito pequenos.
2. Evitar variações bruscas de secções.
3. Evitar massas com distribuição heterogêneas.
4. Evitar furos cegos, roscas e pinos.
5. Evitar proximidade de furos ocasionando paredes finas.
p  e 0,2 – 0,5 0,8 – 1 1,2 – 1,5 1,8 – 2,5 2,8 – 3,5
16 4 – 10 2,5 – 3 1,7 – 2 1,2 - 1,5 0,8 – 1
30 4 – 13 3 – 4 2 – 3 1,5 - 1,8 1,4 – 1,5
60 6 – 15 4 – 5 3 – 3,5 2,2 - 2,6 1,8 – 2
100 8 – 20 5 – 6 4 – 4,2 3 – 3,5 2 – 2,5
150 10 – 25 6 – 7 4,5 – 5 3,2 – 4 2,8 – 3
200 15 – 30 7 – 8 5 – 6 3,8 – 5 3,5 – 4
300 15 – 35 7,5 – 9 5,5 – 6,5 5 – 6,2 4 – 4,6
- Fatec - So - Tecnologia de estampagem -
- 62 -
3 – OPERAÇÕES DE DEFORMAÇÃO
3.1 – Dobra
Para operações de dobra em “V” não é recomendada a utilização de prensas excêntricas, pois a
força final de dobramento se torna incontrolável e muito perigosa para a máquina.
A operação de dobra em “V” pode ser considerada em dois estágios: O primeiro corresponde ao
dobramento de uma viga sobre dois apoios devido a flexão e o segundo corresponde a força de
compressão suportada pela matriz e que garante a eficiência da dobra.
A - Cálculo da força de dobramento.
Onde:
P = força de dobramento.
la = abertura da matriz.
lb = comprimento da dobra.
e = espessura da chapa.
σd = tensão de dobra.
ω = módulo de resistência.
sendo:
σd = M
ω
M = P . la
4
ω = Jy = lb . e³ / 12 = lb . e²
y e / 2 6
- Fatec - So - Tecnologia de estampagem -
- 63 -
Substituindo temos:
Devido a dificuldade de se obter o valor correto de σd, costuma-se trabalhar com σr (tensão de
ruptura).
Nota: Segundo Schuler e Cincinati; σd = 2 . σr, isto é, a tensão de dobra é o dobro da tensão
de ruptura à tração, porém para dobras a 90° com la / e ≤ 10 não se aplica esta definição.
I - Caso
Se a ferramenta é como a figura do caso 2 (compressão), a força de dobra é dada por:
P = 2 . lb . e² . 2 .σr σr = tensão de ruptura (kgf/mm²)
3 la e = espessura da chapa (mm)
la = abertura da matriz (mm)
lb = comprimento da dobra(mm)
I – Exemplo
Qual é a força necessária para dobrar em ângulo reto uma tira de 1m de comprimento, espessura
de 3mm , σr = 40 kgf/mm² e a abertura ''V'' = 50mm.
Dados: lb = 1000mm
la = 50mm
σr = 40 kgf/mm²
σd = 2 . σr = 2 . 40 = 80 kgf/mm²
Resolução:
P = 2 . lb . e² . 2 .σr =
3 la
P = 2 . 1000 . 3² . 2 .40 = 9600 kgf
3 50
Abertura da matriz da dobra
A força necessária para efetuar dobras em ângulos retos, em presas depende de:
a- espessura e natureza do material
b-raio de curvatura e largura do “V” de apoio.
A força de dobra é inversamente proporcional ao raio de curvatura e a largura de abertura do V”.
σd = P . la . 6
4 . lb . e²
P = 2 . lb . e² . σd
3 la
- Fatec - So - Tecnologia de estampagem -
- 64 -
Em geral:
l = 15 a 20e
B - Raio mínimo na dobra.
A observação do raio mínimo na dobra interna é fundamental para a operação de dobramento.
De acordo com a característica e espessura do material, deve ser escolhido o raio para o punção e
para a matriz.
Na falta de valores específicos (DIN 9635), podemos usar os seguintes valores:
C – Retorno elástico (springback)
Devido à elasticidade do material,depois da operação de dobra, a peça obtida tende
readquirir a forma primitiva, isto é, tende a “reendireitar”. Isto acontece por causa da deformação
elástica remanescente que precede a deformação plástica permanente.
Na execução das ferramentas, poderá ser levado em conta este fenômeno, dando ângulos de
dobra mais fechados do que os da peça, de maneira que, depois do retorno elásticos ângulos ficarão
os desejados. Não existe cálculo para determinar a diminuição dos raios e dos ângulos; é feito por
tentativa, por meio de provas e experiências.
Apenas para orientação, podemos considerar que, para compensar o efeito do retorno
elástico e se obter o produto com curvatura r' e a dobra seja feita com ângulo α, é necessário que o
punção apresente um raio r’ e a dobra seja feita com ângulo α’ :
Material Raio
Aço r = (1 a 3)e
Cobre r = (0,8 a 1,2)e
Latão r = (1 a 1,8)e
Zinco r = (1 a 2)e
Alumínio r = (0,8 a 1)e
Ligas de Alumínio r = (0,9 a 3) e
- Fatec - So - Tecnologia de estampagem -
- 65 -
r’ = k(r+0,5e) – 0,5e
α’ = kα
O retorno elástico depende do material e da relação r/e . É maior nos materiais mais duros .
Valores de k
Exemplo:
Determinar o raio do punção e o ângulo de dobra para a peça em figura.Material : aço inox. 18 – 18.
Pelo diagrama sendo r = 5 = 2,5 .·. k =0,85
e 2
- Fatec - So - Tecnologia de estampagem -
- 66 -
r’ =k(r+0.5e) – 0.5e = 0.85(5+0.5 x 2) – 0.5 x 2 = 4,1 mm
α’ = kα = 0.85 x 90 = 76,5° = 76° 30’
Observações:
Na dobra de perfis em “U”,os punções são executados com fundo levemente côncavo, para
compensar a ação elástica do material que tende a abrir o ângulo da dobra.
Devido a impossibilidade de previsões exatas dos punções e matrizes das ferramentas de
dobra serão temperados somente depois de acertados os ângulos e os raios de curvatura. O acerto é
feito por tentativas, isto é, estampando algumas peças com a ferramenta ainda não temperada e
retificada.
Nas ferramentas em “V”, a ação elástica do material é vencida, quebrando o “nervo” do
material com uma pancada a fundo na zona de deformação do material. O punção será rebaixado
conforme o desenho.
Nas ferramentas em “V”, além do artifício citado, podemos recorrer à diminuição de α ou de r.
- Fatec - So - Tecnologia de estampagem -
- 67 -
D - Cálculo do comprimento desenvolvido.
A camada de material que na dobra não sofre deformações de recalque ou de estiramento é
chamada de Linha Neutra (L.N.).
No dobramento, devido aos materiais se deformarem mais a tração do que a compressão, a
Linha Neutra em geral não coincide com o centro (de gravidade geométrica) da secção da peça.
Em geral quando a relação r/e for maior que 4 a L.N. coincide com a linha dos centros de gravidade
da secção.
- Fatec - So - Tecnologia de estampagem -
- 68 -
Valores de K (Função da Relação r/e)
r/e ≥ 0,5 ≥ 0,65 ≥ 1 ≥ 1,5 ≥ 2,4 ≥ 4
K 0,5 0,6 0,7 0,8 0,9 1
EXERCÍCIOS:
1− Calcule o comprimento total desenvolvido (Lt), da peça abaixo:
L = a + b + π (r + e x K) β
2 180°
- Fatec - So - Tecnologia de estampagem -
- 69 -
Resolução:
2- Conforme figura abaixo calcule:
Dados: (σr = 30kgf/mm²)
a) Abertura da matriz;.
b) Comprimento desenvolvido;
c) Força de dobramento;
d) Esquematizar a matriz;
e) Distância entre apoios.
- Fatec - So - Tecnologia de estampagem -
- 70 -
E - Dobras de Perfil em ‘U’
Nas dobras de perfil em U as forças necessárias estão de acordo com a construção da ferramenta.
Em primeiro plano temos como influência a folga ente o punção e a matriz, e em segundo plano a
forma das entradas da matriz nos pontos de apoio do material.
A folga deve ser escolhida, suficientemente grande de forma que não haja estiramento do
material, e sim apenas as dobras nos raios internos.
Raios internos das dobras (tanto na peça como na matriz), devem ser no mínimo igual a
espessura do material. Nas dobras de perfis em “U” sem pisadores tornam-se os fundos abaulados,
que em parte necessitam de grandes forças para a sua planificação.
As forças para planificar o fundo no fim do dobramento podem alcançar valores de até duas vezes e
meia a força de dobramento normal.
Força de dobramento sem planificação de fundo
Onde:
lb = Comprimento da dobra.(mm)
σd = Tensão de dobra ???
Força de dobramento com planificação de fundo
Onde: l b = Comprimento da dobra.(mm)
σd = Tensão de dobra
P = 1,2 . lb . e² . σd ≈ 1,2 . lb . e² . σd . ε
u u
ε ≈ 2,5
P = 2 . lb . e² . σd
3 u
u ≥ 2 . e
- Fatec - So - Tecnologia de estampagem -
- 71 -
Força de dobramento com utilização de pisadores ou sujeitadores
EXERCÍCIO:
1 - Calcular a força necessária para dobrar em ' u', 1 m de chapa de aço com σr = 40kgf/mm² e
espessura e = 3mm+/-0,1; em ferramentas de dobrar tipo matriz e punção.
a) Calcular sem planificação de fundo.
b) Calcular com planificação no fundo.
c) Calcular com prensa-chapa
Força do pisador ou sujeitador = 25% da força para
dobramento.
- Fatec - So - Tecnologia de estampagem -
- 72 -
Tensão de Dobra
σd = 2σ
e = Espessura da chapa
σr = Tensão de ruptura a tração.
I- Caso
Se a ferramenta é como a figura abaixo
Fd = 1 . σd . e .b
6
A peça a ser dobrada se considera como uma viga engastada com balanço l = e.
Exemplo:
Para dobrar uma cantoneira de aço com σr = 40Kgf/mm², 1m de comprimento e 3mm de
espessura, é necessária a fora de:
Fd = 1 . σd . e .b == 1 . 2 . 40 . 3 . 1000 = 1000 =40.000Kg
6 6
Força de dobra para de aço com σr = 40Kgf/mm²
σd = 2σr 80 Kgf/mm²
Fd = σd be = 80 be = 13,33be
6 6
- Fatec - So - Tecnologia de estampagem -
- 73 -
Exemplo
Para dobrar uma tira de aço com σr= 40Kgf/mm²
B=50mm, e = 4,5mm é preciso uma força Fd = 3000 Kg.
II- Caso
Para dobras bilaterais o cálculo é análogo ao caso I isto é:
Fd =2 . 1 . σd . e .b
6
- Fatec - So - Tecnologia de estampagem -
- 74 -
Nota :
a- Se o extrator for acionado por molas e força de dobra deverá ser aumentada da força
de deformação elástica das molas do extrator, que em geral é da ordem de 0,1 Fd.
b- Nas ferramentas de dobra as bordas da matriz deverão ser arredondadas para
permitir o livre escorregamento da chapa. Este particular proporciona um melhor
produto com menor esforço.
Para e = ≤ 6mm
a = 4,5 e
Segundo Kaczmareck o valor da força de dobra é:
Fd = 1 . σd . e² . b , em que
3 a
σd = 18 σr para σr = 30 ÷ 35 Kgf/mm²
20 σr para σr = 32÷ 52 Kgf/mm²
DEVEM SER EVITADAS DOBRAS EM “V” OU EM “U” em prensas excêntricas, pois uma
regulagem deficiente provocaria a ruptura da prensa.
- Fatec - So - Tecnologia de estampagem -
- 75 -
Exemplo 1
Calcular a força necessária para dobrar em “U”, 1m de chapa de aço com σr = 40 kg/mm² e
espessura e = 3mm, em ferramenta com extrator de mola.
a- Força de dobra
Fd = 2 ( 1 . σd . e . b ) = 2 ( 1 . 40 . 3 . 1000) = 80000 Kg
6 6
b- Força do extrator
Fex = 0,1 F = 0,1 . 80000 = 8000 Kg
c- Força total
Ft =Fd ÷ Fex = 80000 ÷ 8000 = 88000Kg
F - Estampos de Enrolar
A operação de enrolar pode ser efetuada por vários métodos.
Enrolar no punção Enrolar na matriz
Nos dois casos acima a peça deve ter uma pré-dobra para iniciar o desenvolvimento.
3.2 - Repuxo
Na operação de repuxo obtem-se peças ocas partindo-se de placas ou chapas planas.
Durante a operação de repuxo o material sofre esforços de compressão (nas bordas da matriz) e
esforços de estiramento.
- Fatec - So - Tecnologia de estampagem -
- 76 -
Na operação de repuxo praticamente a espessura da peça se mantém igual a do Blanque.
A - Cálculo do Diâmetro do BLANQUE
Peças com formas de corpos de revolução, o blanque pode ser calculado de duas formas: pelo
processo de igualdade das áreas ou pelo método do baricentro do perímetro.
Exemplo:
Calcular o diâmetro do blanque para a peça da página abaixo:
Processo pela igualdade das áreas.
Ou seja
Sblanque = Σ Scírculo + Scilindro
π . D² = π . d1 . h1 + π . d1²
4 4
- Fatec - So - Tecnologia de estampagem -
- 77 -
π . D² = 4π . d1 . h1 + π . d1²
4 4
D² = 4d1 . h1 + d1² D = √4d1 . h1 + d1² D = √4 . 100 . 50 + 100²
D = √30000 D = 173,205mm
ou ainda:
S = π . d1 . h1 + π . d1² S = π .100 . 50 + π .100²
4 4
S = 15707,96 + 7853,98
S = 23561,94 como S = π x D²
4
então temos:
π . D² = 23561,94 π . D² = 4 . 23561,94
4
D² = 4 . 23561,94 D² = 30000
π
D = √30000 = 173,205mm
- Método do Baricentro do Perímetro (Processo Analítico)
Calculo pelo centro de gravidade das figuras:
π . D² = 2π . R1 . L1 + 2π . R2 . L2
- Fatec - So - Tecnologia de estampagem -
- 78 -
4
π . D² = 4 . 2π (R1 . L1 + R2 . L2)
D² = 8 (Σ Ri . Li)
D = √8 (Σ Ri . Li) D = √8 (50 . 50 + 25 . 50)
D = √30000 D = 173,205mm
Este processo é o mais utilizado pois pode utilizar a fórmula D = √8 (Σ Ri . Li), para qualquer
que seja o repuxo que quisermos determinar o diâmetro do blanque.
A sequência do calculo é:
1°- Dividir o repuxo em figuras regulares como cilindros, discos, anéis, etc.
2°- Determinar o C.G de cada figura e a distância destes até o centro da peça (Ri)
3°- Determinar o comprimento desenvolvido de cada parte na seção mostrada (Li)
4°- Aplicar a fórmula: R² = 2π . R . m x Σ li
B - Repuxo em vários estágios
Peças com grandes profundidades de repuxo devem ser repuxados em várias operações:
O número das operações depende da profundidade de repuxo e das características de
estampabilidade do material da chapa.
Coeficiente de repuxo - O coeficiente de repuxo fornece a menor relação entre o diâmetro do
punção e o diâmetro do blanque (ainda peça intermediária) em função do material da chapa.
m ≤ d1 ( m = coeficiente para 1° operação)
D
m1 ≤ dn ( m1 = coeficiente para demais operações)
dn – 1
Material m m1
Aço para repuxo 0,60 – 0,65 0,80
Aço para repuxo profundo 0,55 – 0,60 0,75 – 0,80
Aço para carroceria 0,52 – 0,58 0,75 – 0,80
Aço Inoxidável 0,50 – 0,55 0,80 – 0,85
Cobre 0,55 – 0,60 0,85
Latão 0,50 – 0,55 0,75 – 0,80
Alumínio Mole 0,53 – 0,60 0,8
Duralumínio 0,55 – 0,60 0,9
- Fatec - So - Tecnologia de estampagem -
- 79 -
Exemplo 1: Determinar o diâmetro do disco e o número de operações necessárias para obtermos
um recipiente cilíndrico de chapa de aço inoxidável com as dimensões da figura.
Obs: Deixar 3% de sobremetal do blanque para usinagem posterior da altura, arredondar para o
número inteiro mais próximo.
Pela tabela temos:
m = 0,55
m1 = 0,85
Diâmetro do blanque.
D = √4d1 . h1 + d² D = √4 . 72 . 56 + 70²
D = √21028 D = 145,01
Da = 1,03 . 145,01 Da = 149,36 Da ≈ 149mm
Número de operações:
d1 = Da . m d2 = d1 . m1
d1 = 149,055 d2 = 81,95 . 0,85
d1 = 81,95mm d2 = 69,65 = 70mm
h1 = Da² – dm²1 h2 = Da² - dm²2
4 . dm1 4 . dm2
h1 = 149² – 83,95² h2 = 149² - 72²
4 . 83,95 4. 72
h1 = 15153,39 h2 = 17017
335,8 288
h1 = 45126mm h2 = 59,086mm
Exercício:
1 - Determinar o número de operações de repuxo e as respectivas profundidades para
estampagem da peça abaixo: Calcular o diâmetro do blanque pela igualdade das áreas:
- Fatec - So - Tecnologia de estampagem -
- 80 -
2 – Calcular o diâmetro do blanque para a peça abaixo:
Material – aço para repuxo profundo
Material – Latão
0,5m
0,8m1
- Fatec - So - Tecnologia de estampagem -
- 81 -
Exemplo 2:
1- Determinar o blanque. (dois processos)
2- Calcular o número de operações e como são feitas.
Obs: Deixar 5% de sobremetal no blanque para usinagem posterior da altura.(arredondar % para o
n° inteiro mais próximo para mais ou para menos)
Resolução:
1- Cálculo do blanque
S1 = π . d1 . h1 S1 = π . 52 . 48 = 7841,41
S2 = 2π . r² + π² . r . d onde d = 50 – (2 . 2) = 46
2
S2 = 2π . 3² + π² . 3 . 46 = 56,54 + 681 = 737,54
2
S3 = π . d² S3 = π . 46² = 1661,85
Material – Latão
0,5m
0,8m1
- Fatec - So - Tecnologia de estampagem -
- 82 -
4 4
Speça = 7841,41 + 737,54 + 1661,85 = 10240,85
Sblanque = Speça
π . D² = 10240,85 π . D² = 4 . 10240,85 D² = 40963,4 D = √13039,05
4 π
D = 114,18 mm
Pelo processo analítico:
CG (raio) = 0,635 . 3 = 1,9 mm
Perímetro = 2π . r / 4 = 2π . 3 = 4,71 mm
D = √ 8 (Σ Ri . Li)
D = √8 (26 . 48 + 24,9 . 4,71 + 11,5 . 23)
D =114,18 mm
Da = 1,05 . 114,18 = 120mm
d1 ≥ 120 . 0,5 = 60mm
d2 ≥ 120 . 0,8 = 48mm d2 = 50mm
Exercício:
1- Determinar o diâmetro do blanque.
2- Determinar o número e como serão as operações.
Material – Aço
Inoxidável
0,55m
0,85m1
- Fatec - So - Tecnologia de estampagem -
- 83 -
3.3 Etapas do Repuxo
1- Análise do Produto
2- Desenvolvimento do Blanque
3- Número de Estágios necessários
4- Força de Repuxo
5- Sujeitadores
6- Extratores
7- Punções e Matrizes / Folga
8- Componentes do Primeiro Repuxo
9- Componentes dos demais Repuxos / Localizadores
10- Guias Flutuantes
A - ANÁLISE DO PRODUTO
Analisar o desenho do Produto com relação à:
- Raios: Dimensões, proporção com a espessura, posição geométrica.
- Tolerâncias: Definem a precisão necessária às ferramentas
- Geometria: Permite uma previsão do processo interno da ferramenta e definição do
número de estágios necessários.
B – DIÂMETRO DO DISCO
Uma das maneiras mais precisas de se calcular o diâmetro do Disco de Blanque, para peças de
repuxo cilindrico, é o método do volume. Temos abaixo algumas formulas mais usuais para o
cálculo manual:
Figura 1
D=√d1²+4.d.[h+0,57(R+r)]
- Fatec - So - Tecnologia de estampagem -
- 84 -
Figura 2
Figura 3
V1= π.h.(D²-d²)/4 ou V1= π.h.(R²-r²)
Figura 4
V2 = ((π*D²)/4) * e ou V2= π * R² * e
Vt = V1+ V2+Vn
D = √[(4*Vt)/( π*e)]
- Fatec - So - Tecnologia de estampagem -
- 85 -
Atualmente uma maneira bastante precisa de obter-se o volume é modelarmos a peça em CAD
3D, como Pro-E, SolidWorks, Inventor, etc. Devemos porém tomarmos um cuidado especial
com relação aos raios externos da peça, pois sabemos de antemão que existe uma deformação
nesta região em função da tração nas fibras do material no momento do repuxo. A proporção
exata desta deformação só poderá ser obtida através de testes práticos, pois em um mesmo
material podem ocorrer diferenças em função de variações do processo do repuxo e de
fabricação do material. Um acréscimo de cerca de 20% na medida do raio externo pode ser
adotado para minimizar este efeito.
C – NÚMERO DE ESTÁGIOS
Dependendo da análise da geometria da peça, ou seja, da proporção entre a altura repuxada e o
diâmetro, veremos que não é possível se obter a peça pronta em uma única operação de repuxo,
portanto temos que verificar quantos estágios de repuxo será necessário para fabricarmos a peça
sem comprometermos as propriedades mecânicas do seu material. A redução de diâmetro com
conseqüente aumento na altura deve seguir o seguinte sistema:
onde:
Obs.: A partir do segundo Repuxo há necessidade de furos de saída de ar nos punções, para
evitar deformações.
D – FORÇA NECESSÁRIA PARA O REPUXO
O repuxo é realizado na região plástica do diagrama Tensão-Deformação do material.
Usaremos a seguinte fórmula:
Fr = K* π *d*e*σt*1,25
onde:
Fr = Força de Repuxo
d = Diâmetro do Punção
e = Espessura do material
σt = Tensão de tração para repuxo
1,25 = Fator de correção
K = Obtido através da relação entre d e D (onde D = Diâmetro do Disco de Blanque)
d/D 0,55 0,575 0,6 0,625 0,65 0,675 0,7 0,725 0,75 0,775 0,8
K 1,0 0,93 0,86 0,79 0,72 0,66 0,6 0,55 0,5 0,45 0,4
Obs.: Para peças não cilíndricas substituir π*d pelo perímetro da peça.
d1 = 0,6*D h1 = 0,266*D
d2 = 0,48*D h2 = 0,401*D
d3 = 0,384*D h3 = 0,555*D
d4 = 0,307*D h4 = 0,737*D
d5 = 0,245*D h5 = 0,959*D
d6 = 0,796*D h6 = 1,225*D
- Fatec - So - Tecnologia de estampagem -
- 86 -
E - SUJEITADORES
O sujeitador é utilizado principalmente no primeiro estágio do repuxo, para manter uma pressão
específica sobre o blanque, evitando assim o enrugamento da chapa do blanque a ser repuxado
durante a operação. O enrugamento ocorrerá se a pressão de sujeição não for suficiente para
manter a chapa apoiada na matriz. Por outro lado se a pressão for excessiva ocorrerá o
estiramento do material, pois a chapa terá dificuldade para “Escorregar” para dentro da matriz.
Evidentemente a superfície do sujeitador que entra em contato com a chapa deverá ser
devidamente polida e o material tratado termicamente para este fim.
Cálculo da força de sujeição:
P = F / A => Fsj = P . A
Onde: Fsj = Força de sujeição
P = Pressão específica = 0,1 a 0,2 Kgf/mm²
A = Área de contato entre o sujeitador e o blanque.
Obs.: Para ferramentas de baixa precisão ou aplicação grosseira usa-se de maneira genérica:
Fsj = 0,3 . Fr onde: Fr = Força de repuxo
F – EXTRATORES
Os extratores têm a função de retirar o produto de dentro das matrizes e/ou dos punções.
Genericamente usa-se:
Fex = 0,1 . F onde: F = Força da operação (corte, repuxo, etc.)
G – FOLGA ENTRE PUNÇÕES E MATRIZES
A folga necessária entre punção e matriz para repuxo deve levar em conta a espessura da chapa
a ser repuxada, mas tem uma pequena variação para chapas finas, até aproximadamente 1,5mm
e as de maior espessura:
p/ chapas finas: Fpm = e
p/ chapas grossas Fpm = e + t + 20% tol máx.
onde: Fpm = Folga entre punção e matriz
e = Espessura da chapa a ser repuxada
t = Tolerância da espessura da chapa
20% tol máx. = 20% da tolerância máxima da chapa
Exemplo:
Para uma chapa com espessura de 5mm com tol. ±0,2:
Fpm = 5 + 0,2 + 0,04 = 5,24mm
- Fatec - So - Tecnologia de estampagem -
- 87 -
H – COMPONENTES DO PRIMEIRO REPUXO
Lista de componentes essenciais para o primeiro repuxo. Em ferramentas progressivas podem
ser necessários outros componentes adicionais.
- Punção
- Matriz
- Localizador (para o blanque)
- Sujeitador
- Extrator Inferior (Matriz)
- Extrator Superior (Punção)
- Porta – Punção
- Porta – Matriz
- Base superior e inferior e colunas, buchas de guia, etc., se ferramenta individual
I – COMPONENTES DOS DEMAIS ESTÁGIOS DE REPUXO
A lista é muito semelhante à anterior, com pequenas diferenças citadas abaixo:
- O localizador para o blanque e o sujeitador serão substituídos por um Posicionador, que
terá a função de penetrar na peça já repuxada na operação anterior para posicioná-la com
precisão em relação à matriz. Uma deficiência neste posicionamento pode ocasionar um repuxo
descentralizado em relação ao anterior causando imediatamente uma variação na altura e na
espessura da peça, devido ao escoamento irregular do material para dentro da matriz.
Este item será estudado posteriormente em detalhes, pois além desta função, também tem a
finalidade de extrair a peça do punção após o repuxo.
J – GUIAS FLUTUANTES
As guias flutuantes são um recurso muito usado em ferramentas progressivas que envolvem
repuxo, pois se a fita não for elevada após a operação de repuxo, não há como transportá-la
para o próximo estágio.
Em todos os itens aqui estudados estamos considerando um sistema convencional de repuxo,
em prensas excêntricas. Existem máquinas especiais, do tipo “Transfer”, por exemplo, que são
desenvolvidas especialmente para repuxar peça e trabalha em alguns casos com “Repuxo
Invertido”, ou seja, as matrizes estão na parte superior do estampo e os punções na parte
inferior. Nestas máquinas o transporte das peças para o próximo estágio são feitos por um
sistema de transporte exclusivo; daí o nome “Transfer”.
K - Escolha da Prensa – Força Total
Como fator de segurança recomenda-se acrescentar 20% à Força total da operação, para escolha
da máquina necessária, que é dada por:
Ft = (Fr +Fsj +Fex)*1,2 onde:
Ft = Força total da operação (ou do estágio)
Fr = Força para Repuxo
Fsj = Força para Sujeição
Fex = Força de Extração
1,2 = Fator de segurança
- Fatec - So - Tecnologia de estampagem -
- 88 -
A força de repuxo pode oscilar devido a variações no sistema de lubrificação das chapas,
polimento dos punções e matrizes, variações de dureza e propriedades mecânicas da chapa ao
longo da bobina, Temperatura da máquina, etc.
Os métodos mais comuns de lubrificação de fitas para repuxo são:
- Óleos minerais ou vegetais
- Graxas
- Sabão
Também é comum em produções seriadas a aplicação de uma camada de fosfato na face da fita
que entrará em contato com a matriz. Esta camada associada à lubrificação reduz bastante o
atrito, facilitando o repuxo.
Os repuxos realizados com deficiência de lubrificação alem de causar um acréscimo da força
necessária para a operação, acarreta também um fenômeno chamado “Estiramento”, que é a
redução da espessura da chapa, de maneira irregular. Este estiramento deforma o material
aumentando a altura da peça ou reduzindo a quantidade de material que deveria escoar para
dentro da matriz, comprometendo desta forma a geometria final do produto. Além disso, causa
uma fragilidade estrutural no material, podendo causar trincas e até, em casos mais drásticos, a
ruptura do fundo da peça, pois o estiramento normalmente se torna mais acentuado na região
dos raios.
---------------------------------
4 – FERRAMENTAS DIVERSAS
Esta denominação necessita de certa lógica para evitar confusões.
Se a ferramenta efetua várias operações, poderá ser útil mencionar cada uma delas, indicando
eventualmente a ordem na qual irão ser efetuadas.
4.1- Classificações das Ferramentas
Podem ser classificadas as ferramentas, inicialmente, pelas operações que efetuam; temos
assim:
a) Ferramentas de corte;
b) Ferramentas para deformação;
c) Ferramentas de embutir ou repuxar;
Em outros casos as ferramentas podem combinar várias operações, temos assim:
d) Ferramentas combinadas.
Classificação:
a) Ferramentas de corte
Estas ferramentas podem ser classificadas pelo tipo de trabalho:
- ferramenta de corte simples;
- ferramenta de corte progressivo;
- ferramenta de corte total.
Pelas formas da ferramenta:
- ferramenta de corte; aberta (para corte simples);
- ferramenta de corte coberta ou com placa-guia (para corte simples ou progressivo);
- ferramenta de corte com colunas (para corte simples, progressivo ou total);
- Fatec - So - Tecnologia de estampagem -
- 89 -
- ferramenta de corte com guia cilíndrica (para corte total).
b) Ferramentas para deformação
A classificação destas ferramentas pode ser feita somente em função do serviço a ser realizado:
- ferramenta de dobra em V, U ou L;
- ferramenta de enrolar (extremo ou total)
- ferramenta de aplainar
- ferramenta de estampar
c) Ferramentas de Embutir ou Repuxar
Classificam-se pelo tipo de trabalho:
- ferramenta de repuxo sem prendedor de chapa (para repuxo de ação simples)
- ferramenta de repuxo com prendedor de chapa (para repuxo de ação dupla), para prensas se
simples e duplo efeito.
d) Ferramentas Combinadas
Apresentam-se sob formas diversas, sendo possível classificá-las em:
- ferramentas combinadas totais;
- ferramentas combinadas progressivas.
Ferramenta de Estampo Progressivo de Corte, Dobra e Repuxo
- Fatec - So - Tecnologia de estampagem -
- 90 -
4.2 - Elementos Normalizados
Bases
- Fatec - So - Tecnologia de estampagem -
- 91 -
Buchas Guias e Mola
Colunas
- Fatec - So - Tecnologia de estampagem -
- 92 -
5- EQUIPAMENTOS
5.1 - Prensas
No trabalho dos metais em chapas, as máquinas usadas são denominadas “PRENSAS”.
A classificação destas máquinas é feita observando o funcionamento e os movimentos.
Em 1º lugar se distinguem:
- Prensas Mecânicas;
- Prensas Hidráulicas.
Em cada um destas categorias, os movimentos de que são dotadas essas prensas permitem
diferenciá-las em:
1- Prensas de simples ação, ou seja, com um só movimento (mais usual);
2- Prensas de dupla ação, ou seja, com dois movimentos;
3- Prensas de tripla ação.
Citaremos somente a de simples ação.
Neste tipo de prensa é possível diferenciar:
1 – pela sua função:
a) prensas para cortar e embutir;
b) prensas para dobrar e puncionar
c) prensas de forja.
2 – pelo seu comando:
a) prensa de balancim manual;
Trabalho de corte, dobra, embutição ou estampagem que não precisam grandes esforços.
b) prensa de fricção;
Trabalho de forja, estampagem e dobra.
c) prensa de excêntricos; (mais usual)
Trabalho de corte, dobra, embutição ou estampagem de diversos esforços.
d) prensa de virabrequim;
Trabalho de corte, dobra, embutição ou estampagem, mas que constitui um virabrequim.
e) prensa de rótula.
Trabalho de corte, dobra, embutição ou estampagem, com diferente acionamento do
cabeçote.
A - Características das Prensas
Para definir uma prensa devem ser indicadas as características que se seguem:
- tipo;
- força máxima em toneladas e trabalho;
- percursos;
- distância entre mesa e cabeçote;
- potência do motor;
- dimensões externas.
Ademais, o fabricante deve definir sempre as dimensões das fundações previstas para
instalação da máquina.
Prensas Mecânicas: Para prensas de pequena e média potência, pode ser executado em
ferro fundido, aço fundido ou em chapas de aço soldadas. Esta armação aberta por três lados,
permite a passagem lateral da fita. Possuem mancais na parte superior, guias verticais e uma
mesa para fixação das ferramentas. Os principais tipos são: balancim, fricção, excêntrica,
virabrequim, rótula.
- Fatec - So - Tecnologia de estampagem -
- 93 -
Prensas Hidráulicas: estas se diferenciam somente das precedentes pelo comando do
cabeçote. São de uma ou várias colunas e a armação é de ferro fundido ou de chapas de aço
soldadas. A vantagem destas prensas reside na facilidade existente para se regular a pressão do
óleo, o que permite utilizar somente a força necessária e que esta seja controlada.
B - Escolha da Prensa Conveniente
Para se escolher uma prensa para uma determinada operação, devemos conhecer as
características das prensas de que dispõe. Para um trabalho a se realizar devem ser
determinados:
1 - a força (em toneladas) necessária;
2 - o trabalho (em quilogrâmetros) necessário;
3 - as dimensões da ferramenta;
4 - o percurso necessário;
5 - o modo pelo qual se deve trabalhar (golpe a golpe ou em continuação).
Estas especificações vão tomar a escolha mais fácil. A primeira permite que se determine a
força exigida da prensa. A segunda fixa a escolha entre uma prensa de comando direto ou com
aparelhos. A terceira permite assegurar a possibilidade de montagem das ferramentas.
Para a escolha de uma prensa, deve-se evidentemente ter em conta o tipo de trabalho a ser
executado.
Os trabalhos de corte podem ser realizados em todos os tipos de prensas de simples efeito.
As dobras deverão ser efetuadas em prensas excêntricas, prensas de fricção, ou em prensas
especiais para dobrar.
A escolha é mais delicada para trabalhos de embutição. As prensas de duplo efeito, com
mesa móvel, deverão ser utilizadas para trabalhos embutição cilíndrica profunda em chapas
finas.
As prensas hidráulicas permitem grandes pressões a grandes profundidades.
As prensas de simples efeito, providas de almofada pneumática, podem ser utilizadas como
prensas de embutir. Estas prensas permitem exercer grandes pressões de deformação e maior
produção.
C - Dispositivos de Proteção
As prensas são máquinas perigosas para as mãos dos operadores, por esta razão são empregados
diversos dispositivos para que se aumente a segurança, no trabalho.
Uma das mais simples é que se obrigue a utilizar as duas mãos para o comando, o que evita que
o operário deixe uma das mãos debaixo do cabeçote (bi-manual).
Nas grandes prensas, manejadas por vários operadores, dispositivos elétricos no comando
obrigam-lhes a utilizar as mãos na manobra.
Algumas prensas têm uma pantalha protetora, a qual deve ser descida, a fim de acionar a
máquina. Este movimento força o operário a retirar as mãos da zona perigosa.
- Fatec - So - Tecnologia de estampagem -
- 94 -
Modelos de algumas máquinas:
- Fatec - So - Tecnologia de estampagem -
- 95 -
A - Esquema de Repuxo e Estampo Progressivo
Estampo Progressivo Peça Estampada na Ferramenta ao lado
5.6 - Dobradeira
Faca
Canal
chapa
- Fatec - So - Tecnologia de estampagem -
- 96 -
Dobradeira Amada FBD 3 – 8025NT Dobrando uma chapa Peça Dobrada
Este modelo é um marco no sistema de dobramento automático completamente diferente em
conceito de qualquer sistema convencional. Possui programação simplificada e permite o sistema de
conferência no perfil da parte fabricada como também qualquer interface. Também podem ser
executadas modificações de usuário para o programa antes de processar. O sistema é projetado para
prover dobramento para cima e para baixo de 180 a 45 graus. Ele processa produtos novos sem
perda de tempo pela organização de operações. Considerando que não requer nenhum óleo
hidráulico, o este mantém um ambiente de trabalho limpo. Com automatização Integrada, é
desenvolvido para aumentar produtividade idealmente enquanto reduzindo custos em uma
variedade de loja que processa métodos. O sistema também pode ser ampliado e pode ser integrado
com outro equipamento do mesmo fabricante.
5.7 - Automação em Prensas
Desbobinador Endireitador Prensa
Sistema de Automação projetada por Stampco-Setrema
Neste sistema de automação acima, consiste três equipamentos:
- Desbobinador
- Endireitador
- Prensa Hidráulica (descrito no item 3.1)
A - Desbobinador para Fitas
Destinados ao processamento de materiais em rolos / bobinas. Podem ser fornecido com
mandril único ou duplo, eixo com ponta lisa para carretéis ou base giratória para
desenrolamento direto de “pallets”.
- Fatec - So - Tecnologia de estampagem -
- 97 -
Desbobinador c/Mandril Único Desbobinador c/ Mandril Duplo
Características técnicas
• Expansão do diâmetro manualmente acionada
• Suportes laterais para sustentação e guiamento do material
• Freio de inércia para controle do desbobinamento (modelo sem motorização)
• Acionamento por motorredutor (modelo com acionamento)
• Velocidade variável por inversor de freqüência
• Seletor para reversão do sentido de rotação
• Sensor eletrônico para controle de laço - “looping” (modelo com acionamento)
Acessórios opcionais
• Braço pneumático com rolo pressor
• Freio de inércia de atuação pneumática
• Controlador de laço por ultrasom ou sensores fotoelétricos
• Expansão hidráulica do mandril
• Carro transportador / elevador de bobinas
• Telas de proteção conforme PPRPS
• Rolos cônicos para guiamento lateral do material
B - Endireitadores para Fitas
São destinados ao processamento de materiais contínuos em fitas. Podem ser fornecidos em
conjunto com desbobinadores em gabinete único (montagem compacta).
Endireitadora c/ Abertura Manual Endireitadora c/ Abertura Hidráulica
Características técnicas
• Rolos puxadores para tracionamento do material
• Regulagem da pressão dos rolos tracionadores por molas
• Número de rolos endireitadores: (05) cinco ou (07) sete
• Ajuste individual da posição dos rolos endireitadores superiores
- Fatec - So - Tecnologia de estampagem -
- 98 -
• Comando por inversor de freqüência
• Sensor eletrônico para controle do laço (“looping”)
• Seletor no painel para modo de operação “Automática / Manual”
• Guia fita na entrada / cesto de rolos na saída do material
Acessórios opcionais
• Abertura manual ou hidráulica do cabeçote endireitador (introdução da ponta)
• Controlador de laço por ultrasom ou sensores fotoelétricos
• Abertura pneumática para os rolos tracionadores
• Mesa articulada para introdução da ponta da bobina
• Rolo pré-endireitador para preparação
- Fatec - So - Tecnologia de estampagem -
- 99 -
Anexo
Aços ferramentas - Trabalho a quente
VILLARES
METALS
SIMILARES
DESCRIÇÃO APLICAÇÃO
TENAX 300
H11 (MOD.)
1.2343
Matrizes para fundição sob pressão de ligas não
ferrosas, como ligas de Al; nesta aplicação,
recomenda-se o TENAX 300 IM. Matrizes e
punções de forjamento com geometria complexa
ou submetidas a trincas. Espinas para extrusão a
quente de ligas não ferrosas, principalmente Al.
TENAX300IM
H11 (MOD.)
1.2343
Refundido
Moldes e componentes para fundição sob pressão
de ligas de alumínio e outras ligas não ferrosas,
como zinco, estanho e chumbo. Matrizes para
extrusão de ligas de alumínio, latão e ligas de
magnésio. Matrizes e punções para
forjamento. Moldes de injeção de termoplásticos
não clorados, e para facas a quente.
VHSUPER IM
1.2367
(MOD.)
Refundido
Matrizes e punções para forjamento, incluindo
aplicações de recalque a quente e insertos. Facas
a quente. Matrizes para extrusão de ligas de
alumínio, latão e ligas de magnésio. Matrizes e
componentes para fundição sob pressão de ligas
de alumínio e outras ligas não ferrosas, como
zinco, estanho e chumbo.
VHSUPER
1.2367
(MOD.)
Matrizes e punções para forjamento a quente em
prensa. Matrizes para fundição sob pressão de
ligas não ferrosas; nesta aplicação, recomenda-se
a versão IM. Matrizes de extrusão de ligas de Al e
ligas de Cu.
VH13ISO H13 1.2344
Aplicações típicas: Matrizes e punções de
forjamento em prensa. Punção para extrusão de
ligas não ferrosas. Moldes para fundição por
gravidade de ligas leves, especialmente Al. Facas
para corte a quente. Matrizes para fundição sob
pressão de ligas de alumínio, em peças de menor
porte ou pouco complexas.
- Fatec - So - Tecnologia de estampagem -
- 100 -
VH13IM
H13 1.2344
Refundido
Moldes para fundição por gravidade de ligas leves,
especialmente ligas de Al e Mg, em peças
complexas ou de maior porte. Moldes para injeção
de polímeros termoplásticos, com alto grau de
polimento e alta resistência mecânica. Matrizes de
alto desempenho para forjamento em prensa.
VMO 1.2714
Aço com boa resistência mecânica a quente,
destacando-se sua alta tenacidade. Comumente
aplicado em: Matrizes para forjamento em
martelo. Matrizes de grandes dimensões para
forjamento em prensa. Porta-matrizes. Suporte
de ferramentas de extrusão.
VCM
~H10
1.2365
Forjamento de alta velocidade, como em prensas
tipo Hatebur. Forjamento de válvulas
automotivas. Forjamento de porcas, parafusos e
rebites.
VCMAIM
H10(MOD.)
1.2885
Refundido
Aplicações tipicamente em ferramentas muito
aquecidas e de refrigeração intensa: Forjamento
de alta velocidade, como em prensas tipo Hatebur.
Forjamento de válvulas automotivas.
VPCW H12 1.2606
Usualmente aplicado em: Matrizes de forjamento
em prensa. Punções de extrusão de ligas não
ferrosas. Facas para corte a quente.
VW9
~ H20
~H21
1.2581
Ferramentas para uso contínuo em forjamento de
válvulas, parafusos e porcas. Roletes para
laminação a quente.
VCO 1.2721
Matrizes de gravuras rasas para forjamento a
quente em martelo. Facas para corte a frio de
chapas grossas e tarugos. Matrizes para
forjamento a frio. Suportes de ferramentas de
extrusão a quente
- Fatec - So - Tecnologia de estampagem -
- 101 -
Aços ferramenta - Trabalho a frio
VF800AT -
Pentes e rolos laminadores de rosca. Matrizes e
punções para corte e repuxo. Ferramentas de
cunhagem. Facas para corte a frio de chapas
finas.
VD2 D2 1.2379
Matrizes para estampar e cunhar. Pentes
laminadores de roscas. Punções e calibres.
Facas para corte a frio de chapas
VC131 D6 1.2436
Facas para corte de chapas e para corte em
condições abrasivas, como papel e madeira.
Moldes e formas para prensagem de cerâmicas.
Ferramentas de trabalho a frio, em geral.
VND O1 1.2510
Facas para corte de papel e madeira. Guias,
roletes, calibres e padrões. Rolos e ferramentas
de conformação de perfis. Pequenas punções e
matrizes para prensagem e cunhagem.
VS7 S7
Corte de tarugos, chapas grossas e sucata.
Talhadeiras e ferramentas pneumáticas. Placas
de choque e outras ferramentas de trabalho a
frio, submetidas a choques.
VW3 S1 1.2542
Corte de tarugos, chapas grossas e sucata.
Talhadeiras e ferramentas pneumáticas. Placas
de choque e outras ferramentas de trabalho a
frio, submetidas a choques.
VETD W2 1.2833
Capaz de ser endurecido superficialmente,
quando temperado em água, além de preservar
o núcleo tenaz.
Aços rápidos
VWM2 M2 1.3343
Indicado para brocas helicoidais, fresas, machos,
cossinetes, brochas e ferramentas de usinagem.
Usado também para estampos de corte, punções,
matrizes de estampagem profunda e ferramentas
de deformação a frio.
- Fatec - So - Tecnologia de estampagem -
- 102 -
VWM7 M7 1.3348
Recomendado especialmente para ferramentas de
gume fino, como machos, cossinetes, fresas e
brochas helicoidais.
VWM8
Aco Rápido
com 3% V
Aço Rápido com 3% V . Aço com maior resistência
ao desgaste, com carbonetos mais finos e boa
retificabilidade. Usado especialmente na fabricação
de machos.
VWM3C M3:2 Usado principalmente na fabricação de machos.
VHSSM50
M50
~1.3551
De aplicação típica em peças ou dispositivos
mecânicos de alta solicitação, ou ferramentas de
corte de menor solicitação.
VKM42 M42 1.3247
Adequado para aplicações mais extremas. Porém,
não deve ser utilizado em aplicações sujeitas a
choques ou vibrações excessivas.
VK5E M35 1.3243
Usado na confecção de fresas e ferramentas de
perfil, brocas especiais para usinagem de material
de alta resistência.
VK10E 1.3207
Para ferramentas de desbaste e acabamento, de
alta velocidade, de materiais de usinagem difícil,
como aços austeníticos e ligas resistentes ao calor.
- Fatec - So - Tecnologia de estampagem -
- 103 -
Apêndice I
6 - Simbologia de Estampagem
e = Espessura da chapa (mm)
u = Distância entre os pontos de contato da peça com a matriz e o punção(mm)
l = Comprimento da tira (mm)
s = Espaçamento entre peça e borda (mm)
n = Número de peças por metro.
a = Avanço ou passo(mm)
f = Folga entre punção e matriz (mm)
la = Abertura da matriz(mm)
lb = Comprimento da dobra.(mm)
d1 = Diâmetro da peça repuxada (repuxo cilíndrico) (mm)
h1 = Altura do repuxo (mm)
m = Coeficiente de repuxo para 1° operação
m1= Coeficiente de repuxo para demais operações
B = Largura da fita (mm)
Ac = Área de corte (secção resistiva de corte) (mm²)
Acp = Área da cabeça do punção (mm²)
Fc = Forca de corte em tesoura guilhotina (kgf)
L = Comprimento de corte ( mm)
Ap = Superfície total da peça ( mm²)
At = Superfície total da tira ( mm²)
P = Força de dobramento (kgf)
D = Diâmetro do blanque (mm)
Da = Diâmetro adotado considerando usinagem posterior (mm)
Pe = Pressão específica dimensionada para a placa de choque (kgf/mm²)
R = Raio do blanque (mm)
Ri = Raio interno do repuxo (método analítico) (mm)
Li = Altura do reuxo (método analítico) (mm)
τcis = Tensão de cisalhamento do material (kgf/mm²)
λ = Ângulo de inclinação da faca de corte (°)
σƒ = Tensão de flexão.(kgf/mm²)
σr = Tensão de ruptura a tração(kgf/mm²)
J min = Menor momento de inércia
E = Módulo de elasticidade do material(Pa)
ε = Coeficiente para dobras com planificação de fundo
µ = Coeficiente de inclinação
ω = Módulo de resistência.
Apêndice II
- Fatec - So - Tecnologia de estampagem -
- 104 -
7- Roteiro do Projeto de Estampo Progressivo de Corte
P a r t e 1. M e m o r i a l d e C á l c u l o
1. Estudo da Fita
1.1. Definir a posição ideal da peça na fita, com no mínimo:
2 estudos com inversão de corte e 2 sem inversão
1.2. Calcular o número de peças por chapa padronizada
1.3. Calcular a porcentagem de utilização da chapa (considerar o limitador de avanço)
1.3.1. Considerar peça real (com furos)
1.3.2. Considerar a peça bruta (desconsiderar furos)
2. Estudo do Limitador de Avanço
2.1. O projeto deverá considerar avanço manual
2.2. O uso de faca de avanço reduz o rendimento no uso da chapa
2.3. Caso se utilize faca de avanço o rendimento no uso da chapa deverá ser revisto
3. Dimensionamento da Matriz
3.1. Calcular a folga entre punção e matriz
3.2. Efetuar o estudo da parede entre furos
3.3. Calcular a espessura do talão
3.4. Determinar a espessura, comprimento e largura da matriz
3.5. Determinar a vida útil de cada matriz
4. Verificação dos Punções
4.1. Verificar flambagem e resistência à compressão
4.2. Verificar a necessidade de uso da placa de choque
5. Espiga
5.1. Calcular o centro de gravidade do perímetro de corte
5.2. Sugerir tipo da espiga
5.3. Indicar a prensa adequada (fator segurança entre 10 e 20%)
6. Outros Elementos Construtivos
6.1. Elementos Construtivos Padronizados
Bases, colunas de guia (pino), buchas, molas, parafusos, pino-guia (DIN 6325) arruelas, etc., devem ser
normalizados ou padronizados pelos fabricantes: Danly, Miranda, Polimold, Onça, etc. Apresentar a
fonte desses elementos.
6.2. Demais Elementos Construtivos
Definir: porta-punções, sistema de guias e extratores, prensa-chapa, limitadores de avanço e demais
elementos construtivos.
P a r t e 2. D e s e n h o s
1. Apresentar uma pasta com desenhos em tamanho máximo A1
2. Fazer o desenho do conjunto (montagem) em 3 vistas se necessário
3. Fazer o detalhamento de todos os itens do ferramental
4. Punções e Matrizes deverão ter todas as especificações para fabricação. Considerar que esses elementos
operam em conjunto
5. Todos os elementos deverão apresentar: tolerâncias e acabamentos
Apêndice III
- Fatec - So - Tecnologia de estampagem -
- 105 -
8 - Componentes Fundamentais de um Estampo
1. Pino de Fixação
Sua função é fixar componentes do estampo que podem ter movimentos horizontais.
- Fatec - So - Tecnologia de estampagem -
- 106 -
Material: Aço prata.
2. Parafuso hexagonal interna (Tipo “Allen”) - DIN 912
3. Punção ou Macho – Obs.: Ø ≥ e da chapa
Sua função é dar o formato final do produto. É um elemento de muita precisão.
Material: Aço RCC, Aço VC-131 – Temperado 60-62 HRC
Aço VT-131 – Temperado e Retificado p/ trabalho a quente 62-64 HRC.
4. Pino de Fixação
Sua função é fixar componentes do estampo que podem ter movimentos horizontais.
Material: Aço prata.
5. Parafuso hexagonal interna (Tipo “Allen”) – DIN 912
6. Régua de Guia
Sua função é guiar a tira durante o processo de estampagem.
Material: Aço SAE 1045 – não havendo obrigatoriedade de tratamento térmico com HRC 45-48.
7. Chapa de Apoio
Sua função é apoiar a tira antes de entrar no estampo.
Material: SAE 1020.
8. Espiga – Obs.: A rosca da Espiga não é cementada
Sua função é fixar a base superior do estampo no cabeçote da prensa.
Material: Aço SAE 1020.
9. Base Superior – Obs.: Espessura ≥ 20 mm
Sua função é apoiar o conjunto superior do estampo no cabeçote da prensa.
Material: Aço SAE 1020 ou Ferro Fundido.
10. Placa de Choque – Obs.: Espessura entre 5 e 8 mm
Sua função é evitar a penetração dos punções na base superior.
Material: Aço SAE 1045 – não havendo obrigatoriedade de tratamento térmico com HRC 45-48.
Aço VND - não havendo obrigatoriedade de tratamento térmico com HRC 52-56.
11. Bucha de Guia
Sua função é de guiar as colunas do estampo durante o processo de estampagem. Favorece o
deslizamento do cabeçote sobre as colunas.
Material: Aço VND – Temperado 52-54 HRC, Bronze. (Parafusos de Fixação: Aço Liga).
12. Porta Punção
Sua função é posicionar e fixar firmemente os punções.
Material: Aço SAE 1020.
13. Mola de Compressão
- Fatec - So - Tecnologia de estampagem -
- 107 -
Sua função é de possibilitar o recuo do piloto quando ocorrer posicionamento incorreto da tira.
Material: Aço SAE 9260, VS-60 – Temperado 46-48 HRC.
14. Placa Guia
Sua função é guiar os punções e extrair a tira dos punções na subida do cabeçote da prensa.
Material: Aço SAE 1020.
15. Colunas de Guia - Obs.: Encaixe ≥ 1,5 Ø
Sua função é guiar o conjunto superior e inferior do estampo para que não ocorra nenhum
deslocamento entre si.
Material: Aço SAE 1010/1020 Cementado – Temperado 60-62 HRC.
16. Punção ou Macho – Obs.: Ø ≥ e da chapa
Sua função é dar o formato final do produto. É um elemento de muita precisão.
Material: Aço RCC, Aço VC-131 – Temperado 60-62 HRC
Aço VT-131 – Temperado e Retificado p/ trabalho a quente 62-64 HRC.
17. Pino Piloto
Sua função é a de garantir o perfeito avanço da tira corrigindo possíveis falhas no sistema de
avanço.
Material: Aço VND – Temperado 58-60 HRC
Aço Prata – SAE 1040/1050 – Temperado e Retificado.
18. Base Inferior
Sua função é apoiar e fixar o conjunto inferior do estampo na mesa da prensa.
Material: Aço SAE 1020 ou Ferro Fundido.
19. Matriz ou Fêmea
Sua função é a de juntamente com o respectivo punção, formar o produto.
Material: Aço RCC, Aço VC-131 – Temperado 60-62 HRC
Aço VT-131 – Temperado e Retificado p/ trabalho a quente 62-64 HRC.
20. Parafuso Cabeça Escareada - DIN 93
21. Faca de Avanço
Sua função é determinar o avanço (passo) da tira após a cada descida do cabeçote da prensa.
Material: Aço RCC, Aço VC-131 – Temperado 60-62 HRC
- Fatec - So - Tecnologia de estampagem -
- 108 -
Apêndice IV
9 – Tabela de Tolerâncias Punção – Matriz
Peça 1
- Fatec - So - Tecnologia de estampagem -
- 109 -
Peça 2
- Fatec - So - Tecnologia de estampagem -
- 110 -
Apêndice VI
10 – Sequência de Corte de Peças Inclinadas
- Fatec - So - Tecnologia de estampagem -
- 111 -
12 - Bibliografia
• Estampo de Corte – BRITO, OSMAR DE
• Projetista de Máquinas – PRO-TEC – PROVENZA, FRANCESCO
• Estampos I – PRO-TEC - PROVENZA, FRANCESCO
• Estampos II – PRO-TEC – PROVENZA, FRANCESCO
• Manual do ferramenteiro – KONINCK, J. DE.
GUTTER, D

Apostila de estampos sp (1)

  • 1.
    ________________________________________________________________ Fatec Sorocaba TTEECCNNOOLLOOGGIIAA DDEEEESSTTAAMMPPAAGGEEMM Professor: Eng. Msc. Ivar Benazzi Jr. Elpidio Gilson Caversan Apoio: Monitora: Denise A. Queiroz Lima DM 0206007-01 Revisão Março 2010 FACULDADE DE TECNOLOGIA DE SOROCABA w w w . f a t e c . o r g
  • 2.
    - Fatec -So - Tecnologia de estampagem - - 2 - TECNOLOGIA DE ESTAMPAGEM – ÍNDICE 1- INTRODUÇÃO 1.1- Operações de corte ................................................................................................ pág 04 1.2- Operações de deformação ..................................................................................... pág 06 1.3- Generalidades dos Metais...................................................................................... pág 07 A - Operações no Trabalho dos Metais em Chapas................................................pág 08 B - Os Metais em Chapas ..................................................................................pág 08 C - Fabricação dos Metais Laminados.................................................................. pág 08 D - Características dos Metais em Chapas............................................................ pág 09 E - Características das Chapas.............................................................................. pág 10 F - Verificações das Chapas ........................................................................... pág 10 2- OPERAÇÕES DE CORTE 2.1- Corte com tesoura guilhotina .......................................................................pág 12 A - Força de corte em tesoura guilhotina............................................................. pág 12 B - Fases do corte em tesoura guilhotina............................................................. pág 13 C - Tesoura guilhotina com facas paralelas.......................................................... pág 14 D - Tesoura guilhotina com facas inclinadas....................................................... pág 15 E - Condição máxima de inclinação das facas............................................... pág 16 F - Geometria de corte das facas.......................................................................... pág 18 G - Folga entre as facas da guilhotina................................................................... pág 18 2.2- Puncionamento........................................................................................................pág 18 A - Força de corte no puncionamento................................................................... pág 19 B - Folga entre punção e matriz............................................................................ pág 19 C - Estudo de Lay-out da tira (Baixa Produção)................................................... pág 21 - Utilização racional do material.............................................................. pág 21 - Estampo com disposição normal (Vertical) .......................................... pág 22 - Estampo com disposição normal (Horizontal) ..................................... pág 24 - Estampo com disposição e inversão de corte.................................. pág 25 - Estampo de peças circulares....................................................................pág 26 D – Estudo de Lay-out de fita (Alta Produção) .................................................... pág 30 - Utilização racional do material.............................................................. pág 30 - Estampo com disposição normal (Vertical) .......................................... pág 31 - Estampo com disposição e inversão de corte................................... pág 32 - Estampo de peças circulares....................................................................pág 34 E - Determinação do posicionamento da espiga.................................................... pág 36 - Método analítico..................................................................................... pág 36 - Método do baricentro do perímetro ................................................. pág 38 - Espiga de Fixação ............................................................................ pág 41 F - Construção e execução dos estampos de corte ...................................... pág 42 - Simples de corte ......................................................................................... pág 42 - Aberto com guia para o punção ...................................................pág 43 - Fechado com guia p/ o punção e p/ a chapa............................................ pág 43 - Aberto com colunas de guias ................................................................pág 43 - Aberto com extrator flutuante guiado por colunas ......................... pág 44 - Aberto com extrat. flut. e porta-punção guiado por colunas.................. pág 44 - Progressivo.............................................................................................. pág 45 G - Estampos progressivos de corte ............................................................... pág 45 H - Elementos construtivos dos estampos de corte ...................................... pág 48 - Limitadores de avanço............................................................................ pág 48 - Placas de choque .............................................................................pág 51 - Punções ......................................................................................... pág 52 - Porta-punção ................................................................................... pág 54 - Régua de Guia da Fita............................................................................ pág 54 - Apoio da tira ......................................................................................... pág 56 - Placa Guia ......................................................................................... pág 56
  • 3.
    - Fatec -So - Tecnologia de estampagem - - 3 - - Molas...................................................................................................... pág 57 I- Matrizes ...................................................................................................... pág 59 - Características geométricas ............................................................... pág 59 - Cálculo da vida útil e espessura do talão ..................................... pág 59 - Cálculo da espessura da matriz ...................................................pág 60 - Cálculo da espessura da parede entre furos ..................................... pág 61 - Materiais para punções e matrizes.......................................................... ........... pág 61 3- OPERAÇÕES DE DEFORMAÇÃO 3.1- Dobra ................................................................................................................... pág 62 A - Cálculo da força de dobramento ................................................................pág 62 B - Raio mínimo de dobra ............................................................................ pág 64 C - Retorno elástico ............................................................................................ pág 64 D - Cálculo do comprimento desenvolvido ...................................................pág 67 E - Dobras de perfil em “U” .............................................................................pág 70 - Força de dobramento s/ planificação de fundo....................................... pág 70 - Força de dobramento c/ planificação de fundo....................................... pág 70 - Força de dobramento c/ utilização de sujeitadores ........................ pág 71 E - Estampos de enrolar .............................................................................pág 75 3.2 - Repuxo...................................................................................................... ............ pág 75 A - Cálculo do diâmetro do blanque ............................................................... pág 76 - Método das igualdades entre as áreas..................................................... pág 76 - Método do baricentro do perímetro ...................................................pág 77 B - Repuxo em vários estágios............................................................................... pág 78 3.3 - Etapas do Repuxo ................................................................................................ pág 83 A - Análise do produto ......................................................................................... pág 83 B – Diâmetro do disco ......................................................................................... pág 83 C – Número de estágios ....................................................................................... pág 85 D – Força de Repuxo .......................................................................................... pág 85 E – Sujeitadores .................................................................................................. pág 86 F – Extratores ....................................................................................................... pág 86 G – Folga entre punções e matrizes .................................................................... pág 86 H – Componentes do primeiro repuxo ............................................................... pág 87 I – Componentes dos demais estágios de repuxo ................................................. pág 87 J – Guias Flutuantes ............................................................................................ pág 87 K – Escolha da Prensa – força total .................................................................... pág 87 4- FERRAMENTAIS DIVERSOS 4.1- Classificações das ferramentas.............................................................................. pág 88 4.2- Elementos Normalizados .............................................................................pág 90 5- EQUIPAMENTOS 5.1 – Prensas .......................................................................................................pág 92 A - Características das Prensas.............................................................................. pág 92 B - Escolha da Prensa Conveniente ............................................................... pág 93 C -Dispositivos de Proteção ............................................................................ pág 93 D - Esquema de Repuxo e Estampo Progressivo.................................................. pág 95 5.2 – Dobradeira .......................................................................................................pág 95 5.3 - Automações em Prensas..................................................................................... pág 96 A - Desbobinador para Fitas ............................................................................ pág 96 B - Endireitadores para Fitas ............................................................................ pág 97 6 - SIMBOLOGIA DE ESTAMPAGEM ................................................................pág 103 7 - ROTEIRO DO PROJETO DE ESTAMPAGEM .................................................... pág 104 8 - COMPONENTES FUNDAMENTAIS DE UM ESTAMPO................................... pág 105 9 - TABELA DE TOLERÂNCIAS PUNÇÃO - MATRIZ ................................... pág 108 10 - SEQUÊNCIA DE CORTE DE PEÇAS INCLINADAS ................................... pág 110 12 – BIBLIOGRAFIA.................................................................................................... pág 111
  • 4.
    - Fatec -So - Tecnologia de estampagem - - 4 - 1- INTRODUÇÃO Estampagem é o conjunto de operações com as quais sem produzir cavaco submetemos uma chapa plana a uma ou mais transformações com a finalidade de obtermos peças com geometrias próprias. A estampagem é uma deformação plástica do metal. Os estampos são compostos de elementos comuns a todo e quaisquer tipos de ferramentas (base, inferior, cabeçote ou base superior, espiga, colunas de guia, placa de choque, placa guia, parafusos e pinos de fixação, e outros) e por elementos específicos e responsáveis pelo formato da peça a produzir (matriz e punções). Veja na figura ao lado a nomenclatura: 01-Espiga 02-Cabeçote ou Base Superior 03-Placa de choque 04-Porta Punção 05-Punção 06-Colunas de guia 07-Buchas 08-Pinos de fixação 09-Parafusos 10-Extrator 11-Guia das chapas 12-Matriz 13-Base inferior Outra definição dá-se por processos de conformação mecânica, realizado geralmente a frio, que compreende um conjunto de operações, por intermédio das quais uma chapa plana é submetida a transformações por corte ou deformação, de modo a adquirir uma nova forma geométrica. 1.1 - Operações de corte • Corte • Entalhe • Puncionamento • Recorte • Transpasse Corte – Quando há separação total do material. Entalhe – Quando há corte sem separação total.
  • 5.
    - Fatec -So - Tecnologia de estampagem - - 5 - Puncionamento – É a obtenção de figuras geométricas por meio de punção e matriz através de impacto. Recorte – É a operação de corte realizada pela segunda vez.
  • 6.
    - Fatec -So - Tecnologia de estampagem - - 6 - Transpasse – É a operação de corte associada à operação de deformação (enrijecimento em chapas muito finas). Exemplos: fuselagem de aviões, painéis de automóveis, brinquedos, eletrodomésticos, etc. 1.2 - Operações de deformação • Dobramento • Repuxo • Extrusão • Cunhagem • Forjamento à frio Dobramento - É a mudança de direção da orientação do material. Repuxo - Obtenção de peças ocas a partir de chapas ou placas planas devido à penetração do material na matriz forçada pelo punção (Ex. lataria de automóvel, copo de filtro de óleo, etc).
  • 7.
    - Fatec -So - Tecnologia de estampagem - - 7 - Extrusão - Deformação do material devido a esforços de compressão (Ex. vasos de pressão, cápsula de bala de revolver, tubo aerossol, extintores). Utilização de vanguarda – caixilharia, tubos sem costura, tubos de pasta de dente, cápsculas de armamentos, etc. Cunhagem - Obtenção de figuras em alto ou baixo relevo através de amassamento do material (ex. moedas, medalhas, etc ) Forjamento à frio – obtenção de formatos que alteram drasticamente a geografia do blanque, Ex: cabeças de parafusos , esferas (processo inicial), calibragem (operação de redução de espessura do material após repuxo),etc. 1.3 - Generalidades dos Metais O trabalho dos metais em chapas é o conjunto de operações a que se submete a chapa para transformá-la em um objeto de forma determinada. A extensão deste método de trabalho é devida: • Capacidade de Produção • Baixo preço de Custo • Intercambiabilidade • Leveza e Solidez das Peças Obtidas As possibilidades deste sistema de trabalho foram melhoradas e aumentadas devido: À melhora das qualidades: a) do material a ser trabalhado; b) dos materiais utilizados para fabricar as ferramentas; c) ao estabelecimento de dados e normas técnicas cada vez mais precisas. Na origem deste método estava baseado na prática adquirida e no empirismo. As ferramentas eram fabricadas nas oficinas sem intervenção de qualquer assistência técnica. Atualmente a maioria das oficinas possui um escritório técnico (engenharia) para estudos de ferramentaria. Indústrias inteiras nasceram do mencionado processo de trabalho. As aplicações deste método de fabricação de peças encontram-se nos setores mais variados, desde brinquedos até material de transporte entre muitos outros.
  • 8.
    - Fatec -So - Tecnologia de estampagem - - 8 - A - Operações no Trabalho dos Metais em Chapas As diferentes operações a que é submetido o metal, na matriz, podem ser subdivididas em duas categorias: 1 – Separação da matéria; 2 – Modificação da forma do material. A primeira categoria abrange todas as operações de corte: cisalhar, puncionar, recortar as sobras, corte parcial, cortar, cortar na forma, repassar. Na segunda categoria encontram-se: a) Modificação simples da forma: Curvar, Dobrar, Enrolar totalmente, enrolar os extremos, aplainar, estampar; b) embutir e repuxar B - Os Metais em Chapas A maioria dos metais pode ser trabalhada sob forma de chapas. Nesta apostila, nos limitaremos á citar os principais metais utilizados: • Aço; • Cobre; • Alumínio; • Níquel e suas ligas; • Zinco; • Metais Preciosos. C - Fabricação dos Metais Laminados Os metais laminados se apresentam sob forma de: - Chapas: chapas retangulares de dimensões: 700 x 2000 - 850 x 2000 - 1000 x 2000 etc. Que são posteriormente recortadas em forma de Tiras, conforme a necessidade da produção. - Fitas : Laminado metálico de 500 mm de largura máxima e espessura máxima de 6 mm. As fitas se apresentam em forma bobina. O comprimento da fitas enrolada varia conforme dimensões e permitem alimentação contínua. As chapas e fitas são obtidas por laminação a quente e a frio, a partir de lupas (“blooms”) ou placas. Denomina-se lupa (“bloom”) um semi-produto de secção quadrada, de 115 a 300 mm e comprimento de 400 mm, o peso de um “bloom” é. Aproximadamente, 450 Kg. Placa é o semi-produto de secção retangular (largura de 200 a 30 mm, espessura de 45 a 70 mm, com um comprimento aproximado de 1m). A partir da placa, as chapas são obtidas submetendo-se a matéria às seguintes operações: 1ª) Reaquecimento da Placa; 2ª) Desbastamento ou laminação a quente, até uma espessura de 4 a 5 mm; 3ª) Decapagem e enxaguadura das chapas grossas obtidas, colocando-as em pacotes formados por 3 chapas separadas por camadas de carvão de madeira, para evitar a soldagem; 4ª) Reaquecimento dos Pacotes; 5ª) Laminação das chapas grossas e acabamento no trem de laminação (a quente); 6ª) Cisalhamento das chapas e aplainamento a frio; 7ª) Recozimento de Normalização em caixa (930ºC); 8ª) Decapagem, Lavagem, Limpeza com escovas e Secagem;
  • 9.
    - Fatec -So - Tecnologia de estampagem - - 9 - 9ª) Polimento na Laminadeira, a frio, 2 a 3 passadas; 10ª) Segundo recozimento em caixa (600 a 650ºC); 11º) Laminado ligeiro a frio “skin pass”, que deixa uma superfície polida e provoca um leve endurecimento superficial da chapa. Este tratamento evita adelgaçamentos quando se efetua o embutimento. 12ª) Aplainado na máquina de cilindros; 13ª) Inspeção, escolha, lubrificação, empacotamento. Nas laminadeiras modernas, estas diversas operações são feitas em série. As chapas obtidas por laminação a frio devem ter uma espessura regular e um perfeito acabamento superficial. Para obter tais resultados é indispensável que os lingotes utilizados para a fabricação de “blooms” e placas estejam isentos de defeitos, pois estes se transmitirão à chapa. Estes defeitos são principalmente: 1) bolhas: furos produzidos na chapa, por inclusão de gás; 2) picadas: bolhas muito pequenas e muito numerosas; Estes defeitos, tornados mais ou menos invisíveis, ao laminar, podem, após a decapagem, dar chapas arqueadas ou picadas; 3) bolsadas: vácuo central, criado pela contração; exige a eliminação das extremidades do lingote antes da laminação; 4) fendas: produzidas durante o resfriamento do lingote ou devido a um forjado a tempeatura muito baixa (defeito grave, difícil de se descobrir). D - Características dos Metais em Chapas CARACTERÍSTICAS DOS METAIS EM CHAPAS Material Carga de Ruptura (Kgf/mm 2 ) Alonga- mento (%) Profundidade Ericksen (mm) Pressão "p" do sujeitador (kgf/cm 2 ) Aço para corte (Thomas) 36 20 9 28 Aço de embutimento 33 24 10 25 Aço de embutimento Profunda 35 26 10,4 24 Aço para carroçarias 36 25 10,6 22 Aço-siliício 48 - - - Aço inoxidável (18/8) 55 23 13 20 Chapa fina estanhada 32 20 9,5 30 Cobre 23 37 12 20 Bronze de estanho 45 10 10 25 Bronze de alumínio 35 40 11,5 20 Latão Lt 72 30 45 14,5 20 Latão Lt 60 a 63 doce 33 45 13,5 22 Latão Lt 60 a 63 semiduro 39 25 12 22 Zinco 13 56 8 12 Alumínio doce 9 25 10 10 Alumínio semiduro 12 8 8,5 12 Alumínio duro 15 5 7 15 Duralumínio doce fund. 20 19 10 10 Duralumínio laminado a frio 40 12 8 12 Níquel 47 45 12 20 Nota: Os valores indicados são valores médios.
  • 10.
    - Fatec -So - Tecnologia de estampagem - - 10 - E - Características das Chapas Para efetuar as distintas operações a que está sujeito o metal e, principalmente o repuxo, é necessário que este seja homogêneo, maleável, dúctil, com grão suficientemente fino e com um bom acabamento superficial. As chapas caracterizam-se por: a) sua resistência à ruptura (expressa em kgf/mm2 ); b) seu limite de elasticidade (expresso em kgf/mm2 ); c) seu alongamento em %; d) sua dureza superficial (Brinel-Rockwell, etc.); e) sua profundidade de embutido (Ericksen-Guilery). F - Verificações das Chapas Ao receber o material pedido, é preciso ter certeza de que o mesmo obedece às prescrições exigidas. As chapas devem ser verificadas conforme dentro dos limites de tolerância especificadas no pedido e normas. Essas verificações serão efetuadas nas: a) dimensões - comprimento; - largura; - espessura. b) características mecânicas Verificação das Qualidades Mecânicas: - Ensaio de Tração; - Ensaio de Dureza; - Dureza Rockwell; - Dureza Shore. c) qualidades tecnológicas - Ensaio de Dobra; - Ensaio de Embutição; - Máquina Ericksen; - Máquina Guillery. Eventualmente poderão ser realizados ensaios químicos (ensaio macrográfico e ensaio micrográfico). Estas verificações são feitas geralmente tomando de um lote de chapas algumas delas para que sejam verificadas. Se as chapas forem perfeitas, o lote pode ser aceito.
  • 11.
    - Fatec -So - Tecnologia de estampagem - - 11 -
  • 12.
    - Fatec -So - Tecnologia de estampagem - - 12 - 2 - OPERAÇÕES DE CORTE 2.1- Corte com tesoura guilhotina A - Força de corte em tesoura guilhotina. Fc = Ac x τcis Onde Fc = Força de Corte τcis = Tensão de cisalhamento do material (kgf/mm²) Ac = Área de corte (secção resistiva de corte) = l.e l = comprimento de corte ( mm) e = espessura de corte (mm)
  • 13.
    - Fatec -So - Tecnologia de estampagem - - 13 - B - Fases do corte em tesoura guilhotina. 1ª Fase: Deformação Plástica Obs: a folga excessiva das facas de corte pode conduzir em quebra da ferramenta de corte. 2ª fase: Cisalhamento Obs: Para materiais mais moles, se utilizam facas de corte com ângulos de corte menores.
  • 14.
    - Fatec -So - Tecnologia de estampagem - - 14 - 3ª Fase: Ruptura Características da seção de corte Após o corte ,o material apresenta,no perfil do corte,três faixas bem distintas : Deformação: Região 1 Um canto arredondado, no contorno em contato com um dos lados planos da chapa, e que corresponde à deformação do material no regime plástico. Quanto mais duro for o material menor será esta região. Cisalhamento: Região 2 Uma faixa brilhante, ao redor de todo o contorno de corte,com espessura quase constante, e que corresponde a um cisalhamento no metal cortado. Também é menor para materiais mais duros. Ruptura: Região 3 Uma faixa áspera, devido à granulação do material,levemente inclinada que corresponde ao trecho onde ocorreu o destacamento,visto que a área útil resistente vai diminuindo até que se dê a separação total das partes. Comentários: Maiores ângulos das facas Para materiais mais duros Material mole maior cisalhamento Material duro maior ruptura Material mole Provoca abrasão na superfície da ferramenta levando ao rápido desgaste C - Tesoura guilhotina com facas paralelas.
  • 15.
    - Fatec -So - Tecnologia de estampagem - - 15 - Fc = Ac x τcis Onde: Fc = Força de Corte τcis = Tensão de cisalhamento do material (kgf/mm²) Ac = Área de corte (secção resistiva de corte) = l .e l = comprimento de corte ( mm) e = espessura de corte (mm) Exercício: Determinar qual é a força de corte (Fc) necessária para cortar uma chapa em uma guilhotina de facas paralelas. l = 30cm e = 3mm τcis = 30kgf/mm² D - Tesoura guilhotina com faca inclinada. Neste equipamento observa-se nas tiras muito finas um fenômeno conhecido como efeito “hélice” em que a chapa tende a se enrolar. Esta construção necessita um curso um pouco maior devido ao desalinhamento sendo isto uma limitação. e_ = tg λ (1) x Ac = e² (3) 2.tg.λ Ac = e.x (2) 2 Fc = Ac. τcis Fc = e².τcis (4) 2.tg.λ
  • 16.
    - Fatec -So - Tecnologia de estampagem - - 16 - Onde: Ac = Área de corte e = Espessura da chapa λ = Inclinação da faca em graus Fc = Força d corte τcis = Tensão de cisalhamento da chapa Exercício: Determinar qual é a força de corte (Fc) necessária para cortar uma chapa em kgf com uma guilhotina de facas inclinadas. l = 30cm e = 3mm λ = 8° τcis = 30 kgf / mm² E - Condição de máxima inclinação das facas. 2 Fat ≥ Ft (1) P = FN . cos λ (2) Obs : Valores típicos de λ = de 8° a 10° Ft =FN . sen λ (3) Fat = P. µ (4) .·. de (1) e (4) 2 Fat = 2P. µ . ·. 2 P. µ ≥ Ft 2 FN.cos λ . µ ≥ FN.sen λ 2cos λ . µ ≥ sen λ 2 µ ≥ tg λ (5)
  • 17.
    - Fatec -So - Tecnologia de estampagem - - 17 - Onde: Fat = Força de Atrito Fn = Força Normal Ft = Componente Horizontal da Força Normal Fc = Força d corte µ = Coeficiente de atrito Exercícios: 1- Determinar qual é a máxima inclinação das facas para a mesma chapa do caso anterior, porém, considerando faca inclinada, onde: µ = 0,15 (aço/alumínio). 2 - Uma indústria deseja comprar uma tesoura guilhotina para cortar chapas de aço, cobre e alumínio. Determinar a capacidade da tesoura e o ângulo de inclinação das facas, sabendo-se que as espessuras máximas das chapas são: Aço – 1” τcis = 30 kgf / mm² µ = 0,2 (aço / aço) Cobre – 1 1/2” τcis = 20 kgf / mm² µ = 0,11 (aço / cobre) Alumínio - 2” τcis = 17 kgf / mm² µ = 0,15 (aço / Al) Cálculo da inclinação da faca Aço Cobre Alumínio Cálculo da força de corte Aço Cobre Alumínio
  • 18.
    - Fatec -So - Tecnologia de estampagem - - 18 - F - Geometria de corte das facas. Particularidades : Um ângulo menor de β implica em redução na resistência da faca. A potência requerida aumenta para maiores ângulos de β. Ângulos típicos: β = 77 a 85 ° γ = 0 a 10° α = 0 a 6° Σαβγ = 90° G - Folga entre as facas da guilhotina. Folga = Espessura 25 Obs : Folgas grandes podem provocar a quebra das facas. Folgas pequenas provocam o rápido desgaste das arestas de corte. 2.2 – Puncionamento É uma operação utilizada para se efetuar o corte de figuras geométricas por meio de punção e matriz por impacto. (O conjunto de ferramentas que executa operações de corte em série é chamado de estampo progressivo de corte.)
  • 19.
    - Fatec -So - Tecnologia de estampagem - - 19 - A - Força de corte no puncionamento Fc = Ac x τcis Fc = Força de corte Onde τcis = Tensão de cisalhamento do material (kgf/mm²) Ac = Área de corte (secção resistiva de corte) = l . e l = comprimento de corte ( mm) (Perímetro) e = espessura de corte (mm) Neste caso: Ac = área do perímetro de corte = π . d . e Fc = π . d . e . τcis B - Folga entre punção e matriz Segundo Oehler: (f = D - d) ____ f/2 = 0,005 . e . √ τcis p/ e ≤ 3 mm ___ f/2 = (0,010.e - 0,015) . √τcis p/ e >3mm e = espessura da chapa (mm) τcis = tensão de cisalhamento ( kgf/mm²) Obs : Folgas excessivas provocam rebarbas na peça. Folgas pequenas provocam desgaste rápido das arestas de corte.
  • 20.
    - Fatec -So - Tecnologia de estampagem - - 20 - Regra de corte : Peça recortada - Matriz com Ø nominal (mínimo) Furo estampado - Punção com Ø nominal (máximo) Exercício: Determinar as dimensões dos punções e matrizes para estampagem da arruela abaixo. Calcular a força de corte e esquematizar o ferramental. Material : Aço SAE 1020 τcis = 28 kgf/mm² Resolução: Para o furo estampado: Ø Matriz Ø Punção (Nominal) Para o diâmetro externo recortado: Ø Matriz (Nominal) Ø Punção Calculo da Força de Corte: Esquematizar o Ferramental:
  • 21.
    - Fatec -So - Tecnologia de estampagem - - 21 - C - Estudo de Lay out das peças na tira para Baixa produção (pequenos lotes) ( Cálculo de espaçamento entre peça e bordas) S= 0,4e + 0,8 mm B ≤ 70mm ; e ≥ 0,5 S= 2 – 2e B ≤ 70mm ; e < 0,5 S= 1,5 (0,4e + 0,8 mm) B ≥ 70mm ; e ≥ 0,5 S= 1,5 (2 – 2e) B ≥ 70mm ; e < 0,5 - Utilização racional do material A disposição das peças na tira deve levar em conta: • Economia do material. • Forma e as dimensões do material a empregar. • Sentido de laminação, especialmente para as peças que devem ser dobradas. A economia do material é o aspecto mais importante, que justifica os cálculos para assegurar uma utilização racional do material. A determinação do intervalo ou espaço a deixar entre as duas peças e nos cantos da chapa varia conforme as dimensões da peça e espessura do material. Adota-se geralmente: Porcentagem de utilização da chapa % Utilização = Ap.n x 100 Ac Onde : Ap = Superfície total da peça em mm². n = número de peças por chapa. Ac = Superfície total da chapa em mm².
  • 22.
    - Fatec -So - Tecnologia de estampagem - - 22 - Peças retangulares Exemplo: Determinar as diferentes disposições sobre a tira possíveis para cortar a peça acima. Utilize chapa de aço padronizada de 2000x1000x1. Calcular: • Passo (ou avanço).Largura da tira. • Número de peças /tira. • Número de tiras /chapa. • Número de peças / chapa. • % de Utilização da Chapa - Estampo com disposição normal (linha de centro em 90° com a borda) Cálculo de S : (S) Cálculo do Passo: (a) Cálculo da largura da tira: (B)
  • 23.
    - Fatec -So - Tecnologia de estampagem - - 23 - Tiras de 2 metros comprimento (1) Tiras de 1 metro de comprimento (2) Número de tiras de 2 metros de comprimento por chapa: (ntc1) Número de peças por tira: (npt1) Número de peças por chapa: (npc1) % de Utilização: (%U1) Número de tiras de 1 metro de comprimento por chapa: (ntc2) Número de peças por tira: (npt2) Número de peças por chapa: (npc2) % de Utilização: (%U2)
  • 24.
    - Fatec -So - Tecnologia de estampagem - - 24 - - Estampo com disposição normal (horizontalmente) Cálculo de S : (S) Cálculo do Passo: (a) Cálculo da largura da tira: (B) Tiras de 2 metros comprimento (1) Tiras de 1 metro de comprimento (2) Número de tiras de 2 metros de comprimento por chapa: (ntc1) Número de peças por tira: (npt1) Número de peças por chapa: (npc1) % de Utilização: (%U1) Número de tiras de 1 metro de comprimento por chapa: (ntc2) Número de peças por tira: (npt2) Número de peças por chapa: (npc2) % de Utilização: (%U2)
  • 25.
    - Fatec -So - Tecnologia de estampagem - - 25 - - Estampo com disposição e inversão de corte Cálculo de S : (S) Cálculo do Passo: (a) Cálculo da largura da tira: (B) Tiras de 2 metros comprimento (1) Tiras de 1 metro de comprimento (2) Número de tiras de 2 metros de comprimento por chapa: (ntc1) Número de peças por tira: (npt1) Número de peças por chapa: (npc1) % de Utilização: (%U1) Número de tiras de 1 metro de comprimento por chapa: (ntc2) Número de peças por tira: (npt2) Número de peças por chapa: (npc2) % de Utilização: (%U2)
  • 26.
    - Fatec -So - Tecnologia de estampagem - - 27 - - Peças Circulares Estampos com 1 carreira de corte B = largura da tira a = avanço n = número de peças B = D + 2S a + D + S Estampos com 2 carreiras de corte ( Zig-zag) B= (D+S).sen60°+D+2S a + D + S n = [(l - (D + S) . sen30° + D + 2S)] . 2 + 2 D + S
  • 27.
    - Fatec -So - Tecnologia de estampagem - - 28 - Estampos com 3 carreiras de corte (Zig-Zag Duplo) B= (2D+2S).sen60°+D+2S A+D+S n = { [l-(D+2S)].3} + 2 D+S Exemplo: Determinar o número de peças circulares com diâmetro de 80 mm que se pode obter de uma chapa 2000x1000x1 mm considerando: Estampo com 1 carreira Estampo com 2 carreiras Estampo com 3 carreiras Resolução: S= 1,5(0,4e+0,8) mm S= 1,5.0,4+0,8 = s+1,8o mm a =D+S a =80+1,8 a =81,8 mm Cálculo de B para 1 carreira B= D+2 s B= 80+2.1,8 B= 83,6 mm Cálculo de B para 2 carreiras B=(D + s).sen60°+D+2S B=(80+1,80)sen 60º+80+2.1,8 B= 154,5 mm Cálculo de B para 3 carreiras B= (2D+2S)sen60°+D+2S B=(2.80+2.1,80)sen60°+80+2.1,80 B= 225,28 mm
  • 28.
    - Fatec -So - Tecnologia de estampagem - - 29 - Cálculo do número de peças para 1 carreira Para tiras de lt = 1000 mm 23 tiras n = l – D + 2S +1 D+S n = 1000-80+2.1,80 +1 80+1,8 n = 12,2. 23,9 :. n = 276 tiras Para tiras de lt = 2000 mm 11 tiras n = 2000-80+2.1,80 +1 80+1,8 n = 23,4+1 . 11,96 n = 264 peças Cálculo do número de peças para 2 carreiras Para tiras de lt = 1000 mm 12 tiras n = [( l -(D+S).sen30° +D+2S) .2]+2 D+S n = [(1000-(81,8.sen30° +80+2.1,8).2] +2 80+1,8 Cálculo do número de peças para 3 carreiras Para tiras de lt=1000 mm 8 tiras n ={[ n-(D+2S)].3} +2 D+S n ={ [1000-(80+2.1,8)].3} +2 80+1,8 n = 35 . 8 n = 280 peças Para tiras de lt = 2000 mm 4 tiras n = 2000-(83,16) .3 +2 81,8 n = 72 . 4 n = 288 peças Nota : usar chapa de B= 225,26x2000 3 carreiras s =1,80 mm
  • 29.
    - Fatec -So - Tecnologia de estampagem - - 30 - D - Estudo de Lay out das peças na Fita para Alta produção (Grandes lotes) ( Cálculo de espaçamento entre peça e bordas) S= 0,4e + 0,8 mm B ≤ 70mm ; e ≥ 0,5 S= 2 – 2e B ≤ 70mm ; e < 0,5 S= 1,5 (0,4e + 0,8 mm) B ≥ 70mm ; e ≥ 0,5 S= 1,5 (2 – 2e) B ≥ 70mm ; e < 0,5 L = Largura da fita B = Largura aproximada da fita apenas para efeito de cálculo do “S” - Utilização racional do material A disposição das peças na fita deve levar em conta: • Economia do material. • Forma e as dimensões do material a empregar. • Sentido de laminação, especialmente para as peças que devem ser dobradas. A economia do material é o aspecto mais importante, que justifica os cálculos para assegurar uma utilização racional do material. A determinação do intervalo ou espaço a deixar entre as duas peças e nos cantos da chapa varia conforme as dimensões da peça e espessura do material. Adota-se geralmente:
  • 30.
    - Fatec -So - Tecnologia de estampagem - - 31 - Porcentagem de utilização da Fita % Utilização = Ap.n x 100 Af Onde : Ap = Superfície total da peça em mm². n = número de peças no passo. Af = Superfície total da fita em mm². Peças retangulares Exemplos: Determinar as diferentes disposições sobre a fita possíveis para cortar a peça acima. Calcular: 1- Passo (ou avanço). 2- Largura da Fita. 3- Área da Peça. 4- Área do Passo. 5- % de Utilização da Chapa. - Estampo com disposição normal (linha de centro em 90° com a borda)
  • 31.
    - Fatec -So - Tecnologia de estampagem - - 32 - Cálculo de S : (S) S = 0,4 . E + 0,8 porque B< 70mm ; e > 0,5mm S = 0,4 . 1 + 0,8 S = 1,2 Cálculo do Passo: (1) Passo = 35 + 1,2 Passo = 36,2 Cálculo da largura da fita: (2B) L = 1,2+50+1,2 L = 52,4 Área da peça: 750 mm² Área do Passo: 36,2 * 52,4 = 1896,88 mm² Porcentagem de utilização da Fita % Utilização = 750.1 x 100 = 39,5% 1896,88 - Estampo com disposição e inversão de corte Cálculo de S : (S) S = 0,4 . E + 0,8 porque B< 70mm ; e > 0,5mm S = 0,4 . 1 + 0,8 S = 1,2 Cálculo do Passo: (1) Passo = 35 + 10+2x1,2 Passo = 47,4 Cálculo da largura da fita: (2B) L = 1,2+50+1,2 L = 52,4
  • 32.
    - Fatec -So - Tecnologia de estampagem - - 33 - Área da peça: 750 mm² Área do Passo: 47,4 * 52,4 = 2483,76 mm² Porcentagem de utilização da Fita % Utilização = 750.2 x 100 = 60,4% 2483,76 Lay-out Otimizado para esta peça Cálculo de S : (S) S = 0,4 . E + 0,8 porque B< 70mm ; e > 0,5mm S = 0,4 . 1 + 0,8 S = 1,2 Cálculo do Passo: (1) Passo = 35 + 1,2 Passo = 36,2 Cálculo da largura da fita: (2B) L = 1,2+50+1,2+10+1,2 L = 63,6 mm Área da peça: 750 mm² Área do Passo: 36,2 * 63,6 = 2303,32 mm² Porcentagem de utilização da Fita % Utilização = 750.2 x 100 = 65,1% 2303,32
  • 33.
    - Fatec -So - Tecnologia de estampagem - - 34 - Peças Circulares Estampos com uma carreira de corte (Corte Simples) B = largura da tira a = avanço B = D + a + D + S Porcentagem de utilização da Fita % Utilização = Ap.n x 100 At Onde : Ap = Superfície total da peça em mm². n = número de peças no passo. At = Superfície total da fita em mm². Estampos com 2 carreiras de corte (Zig-Zag) B= (D+S).sen60°+D+2S a + D + S n = [(l - (D + S) . sen30° + D + 2S)] . 2 + 2 D + S Porcentagem de utilização da Fita % Utilização = Ap.n x 100 At Onde : Ap = Superfície total da peça em mm². n = número de peças no passo. At = Superfície total da fita em mm².
  • 34.
    - Fatec -So - Tecnologia de estampagem - - 35 - Estampos com 3 carreiras de corte (Zig-Zag duplo) B= (2D+2S).sen60°+D+2S A+D+S Exemplos: Determinar o melhor lay-out para a produção de peças circulares com diâmetro de 80 mm em: Estampo com 1 carreira Estampo com 2 carreiras Estampo com 3 carreiras Resolução: Cálculo para 1 carreira: S= 1,5(0,4e+0,8) mm S= 1,5.0,4+0,8 = s+1,8o mm a =D+S a =80+1,8 a =81,8 mm Área da Peça: (п * 80²) / 4 = 5026,54 Cálculo de L para 1 carreira L= D+2 s L= 80+2.1,8 L= 83,6 mm Área do Passo: 81,8 * 83,6 = 6838,48 % Utilização = 5026,54 * 1 x 100 = 73,50% 6838,48
  • 35.
    - Fatec -So - Tecnologia de estampagem - - 36 - Cálculo para 2 carreiras L=(D + s).sen60°+D+2S L=(80+1,80)sen 60º+80+2.1,8 L= 154,5 mm Área do Passo: 81,8 * 154,5 = 12638,10 % Utilização = 5026,54 * 2 x 100 = 79,54% 12638,10 Cálculo de L para 3 carreiras L= (2D+2S)sen60°+D+2S L=(2.80+2.1,80)sen60°+80+2.1,80 L= 225,28 mm Área do Passo: 81,8 * 225,28 = 18427,90 % Utilização = 5026,54 * 3 x 100 = 81,83% 18427,90 E - Determinação do posicionamento da espiga – Método Analítico Xg = P1.x1+P2.x2+P3.x3+P4.x4 (P1+P2+P3+P4) Equilíbrio através do momento onde Pt = ΣPi de 1 a 4 XG = ΣPixi donde se deduz que ΣPi XG = ΣLixi onde Li = π .d (perímetro) ΣLi
  • 36.
    - Fatec -So - Tecnologia de estampagem - - 37 - XG = P1.X1+P2.X2+P3.X3 P1+P2+P3 P1 = L1.e.τcis P2 = L2.e.τcis P3 = L3.e.τcis XG = e. τcis . (L1.X1+L2.X2+L3.X3) e.τcis.(L1+L2+L3) XG = ΣLi.Xi ΣLi YG = ΣLi.Yi ΣLi Ponto Xi Yi Li Li.Xi Li.Yi 1 2 3 Σ ΣLi ΣXiLi ΣYiLi d1 10 d2 12 d3 14 x1 10 x2 30 x3 50 y1 50 y2 30 y3 10
  • 37.
    - Fatec -So - Tecnologia de estampagem - - 38 - – Método do Baricentro do Perímetro XG = Σ Li.Xi Σ Li YG = Σ Li.Yi Σ Li Exemplo : Não é válido calcular o CG em relação à área para figuras irregulares. Nestes casos calculamos o CG em relação ao perímetro que é onde haverá corte.
  • 38.
    - Fatec -So - Tecnologia de estampagem - - 39 - Exemplo : Dividir sempre uma figura a ser puncionada em perímetros conhecidos localizando os seus próprios centros de gravidade. Centro de gravidade de curvas
  • 39.
    - Fatec -So - Tecnologia de estampagem - - 40 - Exercício: Determinar o CG do estampo : Ponto Xi Yi Li Xi.Li Yi.Li 01 02 03 04 05 06 07 08 09 10 11 12 Σ
  • 40.
    - Fatec -So - Tecnologia de estampagem - - 41 - XG = Σ Li.Xi = Σ Li XG = YG = Σ Li.Yi = Σ Li YG = Espiga de Fixação A fixação da parte móvel do estampo no martelo da prensa é feita aplicando-se um pino roscado, o qual denominar-se de espiga. A espiga é introduzida no furo existente no martelo e, por intermédio de um parafuso, fixa-se o conjunto. A espiga é um elemento de forma cilíndrica e o seu diâmetro, assim como o comprimento, deverá ser de acordo com o furo do martelo já existente na prensa, onde será montado o estampo. Geralmente, a espiga é constituída com um aço comum como, por exemplo, SAE 1010 ou 1020, exceto em casos especiais, nunca receberá tratamento térmico. Esta deve ser suficientemente robusta para poder resistir ao peso do móvel mais o esforço de extração. Assim, em uma espiga, a sua parte mais fraca é o menor diâmetro, vamos desenvolvê-la considerando o diâmetro do núcleo da rosca como o mais crítico. O peso da parte superior é calculado sempre para este caso de uma maneira aproximada, considerando-o até por estimativa. A letra “S” encontrada logo após a fórmula será o coeficiente de segurança que adotaremos com sendo 2,5 a 3 para determinarmos a área do núcleo da rosca. Depois que calcularmos a área do núcleo da rosca, podemos encontrar o diâmetro do mesmo com a fórmula a seguir: Obs: Alguns tipos de Ferramentas progressivas, de vários estágios e, ou de grande parte são fixadas ao cabeçote superior através de grampos mecânicos (com parafusos)ou hidráulicas
  • 41.
    - Fatec -So - Tecnologia de estampagem - - 42 - Obs.: Este é um modelo de espiga para estampos de pequeno e médio porte. Dificilmente iremos calcular um diâmetro de núcleo que coincida com uma rosca normalizada, por este motivo, podemos aumentá-lo até encontrar um diâmetro de rosca imediatamente superior. F - Construção e execução dos estampos de corte - Estampo simples de corte Para corte sem muita precisão Precisão de corte ± 0.2 mm
  • 42.
    - Fatec -So - Tecnologia de estampagem - - 43 - - Estampo aberto com guia para o punção - Estampo fechado com guias para o punção e apoio para a fita
  • 43.
    - Fatec -So - Tecnologia de estampagem - - 44 - - Estampo com colunas de guias, extrator fixo e guia para fita. - Estampo com extrator flutuante e porta - punção guiado por colunas
  • 44.
    - Fatec -So - Tecnologia de estampagem - - 45 - 3.6.7 - Estampo de Corte Progressivo (esquemático) G - Estampos progressivos de corte Obs.: não há retalho rebobinável 1º passo – corte do retalho lateral e marcação do passo 2º passo – corte dos furos internos. 3 º passo – corte do contorno externo com separação das peças. - Estampo de Corte Progressivo (esquemático)
  • 45.
    - Fatec -So - Tecnologia de estampagem - - 46 - Na figura acima tem-se o caso de aproveitamento dos dois punções laterais marcadores de passo, como cortadores do retalho lateral, e um terceiro de forma, para separação das peças, e corte do retalho que se forma entre elas. No exemplo da figura abaixo tem-se o aproveitamento dos punções marcadores de passo como cortadores de retalho lateral. Para o destacamento das peças utilizou-se um jogo de facas paralelas. Neste caso não houve formação de retalhos entre as peças. Como dissemos anteriormente, nem sempre se utiliza sistematicamente corte de retalho. É o caso de se rebobinar a lâmina cortada. Este método de alimentação com material bobinado subentende que se deseje alta produção, e que o material e a sua espessura conferem a lâmina uma certa flexibilidade que permita o desenrolamento da bobina e o bobinamento do retalho obtido com certa facilidade. Neste caso, geralmente, as peças produzidas são de pequena dimensão. A alta produção nos obrigaria a colocar um alimentador automático na prensa. A bobina, a fim de se tornar plana, nos obrigaria a utilizar uma estreitadora de chapas. O esquema de conjunto seria então indicado pela figura abaixo (esquema de um conjunto utilizado em alta produção). Quando a espessura, a largura e o material da lâmina, forem tais que um bobinamento se torne incomodo, passa-se a utilizar, ainda que com produção elevada, um sistema de tiras obtidas numa tesoura guilhotina. Corte utilizando uma faca para destacar a peça no final da seqüência Obs.: Não há retalho rebobinável. 1 º passo – corte do retalho lateral e marcação do passo. corte do furo interno 2 º passo – corte do rasgo para completar a forma do furo interno. 3 º passo – passo morto. 4 º passo – separação das peças.
  • 46.
    - Fatec -So - Tecnologia de estampagem - - 47 - Esquema de um processo utilizado em alta produção A – bobina de material enrolado D – estampo B – endireitadora de chapa E – bobina de retalho C – alimentador automático (empurrando a fita) C1= Alimentador automatico após a ferramenta (puxando a fita) Obs: É usado apenas um alimentador . A opção C1 é utilizada quando a fita é extremamente fina ou quando se deseja manter a integridade da fita de retalho para uso posterior. Apenas neste caso é utilizado o bobinador “E”.Caso não seja usado o retalho podemos “pica-lo” através de uma pequena guilhotina, para facilitar o descarte como sucata. 1° Passo – corte dos furos internos 2° Passo – corte do contorno 3° Passo – separação do retalho vantagem – controle direcional desvantagem - usinagem (Pode fazer a peça em dois estágios) 1° Passo – corte dos furos internos 2° Passo – execução do recorte externo 3° Passo – corte do contorno e separação do retalho
  • 47.
    - Fatec -So - Tecnologia de estampagem - - 48 - No segundo caso a solução mais indicada seria cortar o retalho em secções curtas. O terceiro caso impossibilita alternativa a não ser armazenar as pontas e sobras em containeres. Vem desta maneira que os estampos deverão ser providos, em alguns casos de elementos que possibilitam o corte da lâmina em pequenos retalhos, com finalidade de facilitar o transporte e o armazenamento. Tais elementos recebem uma construção típica conforme o tipo de peça com que esteja lidando. H - Elementos construtivos dos estampos de corte. Limitadores de avanço Para melhorar a produção é necessário que a prensa seja alimentada com continuidade e a chapa colocada em disposição correta. Para isto, existem dispositivos simples e complexos,com funcionamento manual ou automático. Eles limitam o avanço da fita a cada golpe da prensa. Limitadores de Avanços Manuais: Limitadores de pino fixo (pino stop) Limitadores de pino móvel Pino acionado manualmente
  • 48.
    - Fatec -So - Tecnologia de estampagem - - 49 - Limitador acionado por mola Limitador através de faca de avanço
  • 49.
    - Fatec -So - Tecnologia de estampagem - - 50 - Limitador por entalhe lateral e bloqueio por mola Limitadores centralizadores
  • 50.
    - Fatec -So - Tecnologia de estampagem - - 51 - Balancim ou encosto oscilante Avanços Automáticos São dispositivos mecânicos ou pneumáticos que funcionam com movimentos sincronizados com as prensas utilizadas para estampar. – Placas de choque Placa de Choque Inteiriça Placa de Choque Segmentada Para impedir que a punção penetre no cabeçote, coloca-se entre a cabeça do punção e o cabeçote do estampo, uma placa de aço temperado com espessura máxima de 5 mm a 8mm. Outra função é a distribuição da pressão da punção. O Material é normalmente utilizado o aço SAE 1045 e levando um tratamento térmico não obrigatório de HRC 45-48, não havendo necessidade de maior dureza para não torná-la quebradiça. Podemos usar também uma única placa com o mesmo dimensionamento (largura e comprimento) do porta punção, por haver um menor tempo de usinabilidade e/ou por motivos de punções com geometrias mais complexas, para isso chamamos de placa de choque inteiriça.
  • 51.
    - Fatec -So - Tecnologia de estampagem - - 52 - Dimensionamento: A placa de choque será empregada sempre que a pressão específica em qualquer punção for superior a P = 4 kgf/mm2 . Recomenda-se analisar o menor punção. Cálculo de Pe (pressão específica): Pe = Fc Acp Onde: Fc= Força que atua no punção (Kgf) Pe = Pressão específica dimensionada para a placa = 4 kgf/mm² Acp = Área da cabeça do punção (mm²) - Punções Tipos e forma de fixação: Quanto a aresta de corte: O tipo mais utilizado é o retificado em esquadro (1); é o mais barato e sempre usado para corte de chapas com e ≤ 2mm.
  • 52.
    - Fatec -So - Tecnologia de estampagem - - 53 - Os punções de Ø relativamente grande são comumente feitos côncavos ou com fio de corte inclinado (2,3,4,5). O tipo 6 é usado para trabalhos muitos grosseiros ou em forjaria, para corte a quente. Os punções tipo faca (7,8,9) são usados para materiais não metálicos ou fracos, e trabalham sem matriz, usando como base uma placa de borracha ou madeira topo. Verificações dos punções Verificação 1: Resistência à compressão Em geral se o diâmetro da punção for bem superior à espessura da chapa, não há necessidade de se fazer a verificação da resistência de compressão. Para diâmetros próximos a espessura da chapa pode-se utilizar a seguinte regra prática: Para materiais com σr ≤ 40 Kgf/ mm2 - dmin = e Para materiais com σr > 40 Kgf/ mm2 - dmin = 1,5e Verificação 2: Flambagem L – Comprimento livre máximo Onde: E – Módulo de elasticidade (aço 21000 kgf/mm²) J – Menor momento de inércia da seção Fc – Força de corte (kgf) Comprimento dos punções (usual) 50 a 80 mm Alguns Valores de J Jmin = πd4 64 Jmin = _a4 12 Jmin = b.h3 12
  • 53.
    - Fatec -So - Tecnologia de estampagem - - 54 - Porta-punção Na fixação conveniente dos punções pequenos, geralmente são utilizadas placas denominadas de porta-punção, confeccionadas comumente de aços SAE 1010 ou 1020. A espessura do porta-punção é o fator primordial, sendo que podemos considerá-la no mínimo 0,25 do comprimento do punção, independentemente da espessura, o punção deve ter apoio lateral suficiente e sua localização no porta-punção varia conforme a peça a ser confeccionada. Com referência à ajustagem dos punções no porta punção, devemos observar que o punção deve ter um ajuste perfeito, evitando qualquer movimento. Na parte da cabeça do punção podemos deixar a medida de 1mm de diâmetro maior que o diâmetro da cabeça do punção d2, e o encaixe que vai receber a cabeça do punção de medida ex: 4,2-0,1 , deve ser usinado com medida 4,1-0,05 , retificando-se o excesso deixado para obter um ajuste uniforme entre o punção e o porta-punção. Quando o contorno for de perfil cilíndrico podemos usinar o encaixe do corpo do punção com “N7” e, provavelmente, o punção terá “h6”. Quando o contorno do punção não for de perfil cilíndrico podemos usinar o encaixe do corpo do mesmo com “H7” e se acrescenta um sistema de travamento, caso não possua cabeça. Esta mesma tolerância pode ser empregada em punções cilíndricos, desde que sejam recambiáveis. Régua de Guia da Fita As réguas de guia ou guias laterais do produto tem como objetivo guiar convenientemente a tira do produto dentro do estampo, sendo montadas numa distância entre si igual à largura da tira mais um mínimo de folga que possibilite um deslizamento regular da tira que geralmente é cerca de 20% da espessura da chapa. Jmin = π(D4 - d4 ) 64 Base Superior Porta-Punção
  • 54.
    - Fatec -So - Tecnologia de estampagem - - 55 - O material das réguas poderá ser SAE 1045 ou VND, sendo aconselhável o tratamento térmico para HRC 45-48. O dimensionamento das réguas de guia far-se-á de acordo com o que se deseja, por exemplo, para a largura da régua dever-se-á levar em consideração o diâmetro da cabeça do parafuso de fixação, sendo que esta largura deverá ter no mínimo 2,5 vezes este diâmetro já referido, e quando tiver encosto móvel é determinada conforme o apoio deste. O comprimento também deverá ser calculado segundo o bom senso, pois a régua deverá se suficientemente comprida para guiar a tira. Recomendam-se guias com comprimento 2 vezes superior à largura da tira. Esse dimensionamento seria a partir do punção até à parte da entrada da tira. A espessura da régua de guia é uma das partes mais delicadas deste elemento, porque devemos considerar que, em um estampo fechado o intervalo existente entre a guia do punção e a matriz deve ser considerado para espessura acima de 0,5 mm e que este intervalo será duas vezes a espessura mínima da chapa menos 0,2 a 0,3, isto para evitar que possam entrar duas peças de uma só vez no estampo e garantir também que não haja ruptura de punção. Esta altura obedece as seguintes dimensões: p/ p/ Em geral: p/ p/ p/ p/ A abertura “A” costuma-se fazer: Para tiras e chapas: p/ p/ Para ferro chato: p/
  • 55.
    - Fatec -So - Tecnologia de estampagem - - 56 - p/ e = espessura da chapa a = largura da tira Dimensionamento da régua em relação ao comprimento Espessura da régua (mm) Comprimento da régua (mm) 8 até 200 10 até 300 12 até 400 Caso esta régua seja temperada e acima de 400 mm de comprimento, é conveniente dividi-la em segmentos para evitar empenamentos durante tratamento térmico. Apoio da tira É uma simples placa fabricada em material comum SAE 1010, fixada com parafuso não sendo necessário colocar pinos. Quanto a usinagem, pode ser feita somente do lado em que a tira do produto seja apoiada. Geralmente tem largura igual ao somatório entre os elementos, régua guia e a largura do produto. A espessura em geral é igual a 8 mm. O comprimento é determinado pelas réguas de guia. Em estampos cujo produto tem espessura fina aplicamos um tipo de apoio formando um túnel, que seria o apoio normal, e uma placa montada na parte superior, dando o intervalo nesta montagem de 2 espessuras mínimas do produto. Placa Guia A placa de guia geralmente é confeccionada de aço SAE 1020 não havendo necessidade de tratamento térmico. Sua espessura deve-se relacionar com o comprimento do punção sendo que, em geral, aplicamos: h = L 4 A distância da placa guia á matriz, ou seja, o intervalo (i), depende da espessura da peça e da régua guia como antes já foi observado.
  • 56.
    - Fatec -So - Tecnologia de estampagem - - 57 - Quando cortamos uma peça e não a retalhamos, com o decorrer das operações de corte o retalho tende a enrolar, e para evitar isso venha a interferir no andamento do retalho, aliviamos conforme o indicado. O guia do punção pode ser simplificado utilizando enxertos, quando se tem punções com perfil complexo ou quando se deseja reduzir a área que irá tocar a peça, deixando a parte mais trabalhosa em usinagem para o enxerto. A placa guia normalmente é fixa com o conjunto inferior do estampo e tem a utilidade também de extrair o punção de dentro do furo cortado na operação. Temos também placas iguais á placa guia, somente que são móveis e as denominaremos de sujeitadores prensa-chapas ou ainda de extratores móveis, sendo que escolhemos a denominação conforme a função do elemento. Molas Para se calcular as molas, devemos conhecer a força de extração. Esta força é aquela que tem o objetivo de extrair o punção de dentro do furo cortado, pois, quando furamos uma determinada peça o furo pode prender o punção. Para o entendimento, a extração é determinada com os pontos em que se dará interferência na extração. Então consideremos a força de extração (Fe):
  • 57.
    - Fatec -So - Tecnologia de estampagem - - 58 - Para cálculo do curso de trabalho desta, devemos considerar a “Fe” no ponto exato, onde temos o ponto máximo de penetração do punção na matriz “c” que, geralmente, deixamos com 1mm. Também encontramos o ponto máximo de penetração do punção no extrator “b” que também costumamos deixar 1 mm e finalizando temos o ponto onde a força de extração atinge o máximo “a”, neste ponto, as molas devem ter força maior ou igual à força de extração. Portanto, o curso de trabalho “f” das molas será a soma dos respectivos pontos, sendo que no lugar de “a” acrescentamos a espessura da chapa, assim: A mola ainda deve ser pressionada de 0,5 a 1 mm para que já inicie com uma pré- compressão. Os cálculos devem ser verificados rigorosamente se as molas atingem o curso de trabalho “f” mais a pré-compressão, assim como devem ser observados com o mesmo rigor, se no ponto “a” tiverem força suficiente para extrair a peça. Para determinarmos a capacidade da prensa devemos somar a “Fc” a todas as cargas das molas quando estão totalmente comprimidas e, no final desta somatória, acrescentamos um coeficiente de segurança de 10 a 30%, dependendo da máquina. Por outro lado, podemos adquirir as molas no mercado, pois os fabricantes normalmente nos informam todas as referências, tais como Ø do arame, Ø da mola, carga que pode suportar, curso, etc., tendo disponível no mercado uma enorme série para ser escolhida de acordo com a situação. Para efeito de conhecimento, temos a seguir as formulas para os cálculos das molas. Mola Quadrada Mola Redonda Mola Retangular Onde:
  • 58.
    - Fatec -So - Tecnologia de estampagem - - 59 - P = Força aplicada (Kp) σt = Resistência prática do aço ao cisalhamento, cerca de 30 a 40 Kp/mm2 n = Número de espiras úteis G = Módulo de elasticidade ao cisalhamento, cerca de 8000 a 10000/mm2 f = flecha, suportando a força P. Portanto, a deformação do anel será “g” e a para molas a compressão Logo Para molas a tração: I - Matrizes Matrizes e punções constituem os elementos fundamentais das ferramentas. Na matriz está recortado o formato negativo da peça a ser produzida. A matriz é fixada rigidamente sobre a base inferida com parafusos, porta matriz ou outro meio, sempre de modo a formar um conjunto bem sólido. A matriz deverá ser confeccionada com material de alta qualidade e com acabamento finíssimo. Características principais das matrizes de corte são: • Ângulo de saída para facilitar o escoamento do material cortado. • A folga entre punção e a matriz que é responsável pelo corte da peça desejada. • Altura do talão determina nº de afiações possíveis. Características Geométricas
  • 59.
    - Fatec -So - Tecnologia de estampagem - - 60 - Cálculo da vida útil e espessura do talão A altura do talão determina o nº de afiações possíveis na matriz Em geral após o corte de 40 mil a 60 mil peças a matriz deve ser afiada. Cada afiação reduz aproximadamente 0,15 mm da espessura da matriz T= n º de peças x 0,15 40.000 a 60.000 T = espessura do talão Espessura retirada numa afiação (média) = 0,15 mm Expectativa de peças produzidas entre afiações = 30000 a 40000 peças Nota: o talão t deve ter no máximo 12 mm. Tmáx =12 mm Alturas recomendadas para o talão T≤ 3,0.e para e‹1,5 mm T≈ 1,5.e para e›1,5 mm T= 1,0.e para e›6,0 mm Cálculo da espessura da matriz A força de punção se distribui ao longo dos gumes de corte da matriz, de forma tal que se esta não tiver espessura suficiente, acabará não resistindo aos esforços. Espessura da Matriz: F E ton cm kgf mm
  • 60.
    - Fatec -So - Tecnologia de estampagem - - 61 - Cálculo da espessura da parede entre furos D 3 - 6 6 - 12 12 - 20 X 6 10 13 F (ton) 10 15 20 30 50 90 120 E (mm) 16 16 22 28 34 40 46 C (mm) 9 - 10 12 - 13 14 - 15 17 - 18 21 - 23 29 - 30 34 - 35 C' (mm) 11 - 12 14 - 15 17 - 18 21 - 22 26 - 27 36 - 37 41 - 42 Y (mm) 2 a 3 . em OBS: Para matrizes inteiriças ou encaixadas podemos Z (mm) α . e (e = espessura da chapa em mm) tomar 0,8 . em Para os valores de α, vide tabela abaixo: Valores de α : onde: p = perímetro de corte (mm); e = espessura da chapa (mm) Materiais para punções e matrizes Características: 1. Elevada resistência mecânica 2. Dureza elevada após tratamento térmico. 3. Resistência ao desgaste. 4. Resistência ao choque. 5. Boa temperatura e usinabilidade. 6. Indeformabilidade durante o tratamento térmico. Recomendação de materiais para punção e matriz Tratamento térmico Para o tratamento térmico dos punções e matrizes deve-se consultar o catálogo do fabricante. A dureza dos punções deve ser a princípio na faixa de 56 a 62 HRC após o revenimento. Recomendações de projetos para punção e matriz Para que não haja problemas de concentração de tensões durante e depois do tratamento térmico deve-se seguir as seguintes recomendações : 1. Evitar cantos vivos ou raios de arredondamento muito pequenos. 2. Evitar variações bruscas de secções. 3. Evitar massas com distribuição heterogêneas. 4. Evitar furos cegos, roscas e pinos. 5. Evitar proximidade de furos ocasionando paredes finas. p e 0,2 – 0,5 0,8 – 1 1,2 – 1,5 1,8 – 2,5 2,8 – 3,5 16 4 – 10 2,5 – 3 1,7 – 2 1,2 - 1,5 0,8 – 1 30 4 – 13 3 – 4 2 – 3 1,5 - 1,8 1,4 – 1,5 60 6 – 15 4 – 5 3 – 3,5 2,2 - 2,6 1,8 – 2 100 8 – 20 5 – 6 4 – 4,2 3 – 3,5 2 – 2,5 150 10 – 25 6 – 7 4,5 – 5 3,2 – 4 2,8 – 3 200 15 – 30 7 – 8 5 – 6 3,8 – 5 3,5 – 4 300 15 – 35 7,5 – 9 5,5 – 6,5 5 – 6,2 4 – 4,6
  • 61.
    - Fatec -So - Tecnologia de estampagem - - 62 - 3 – OPERAÇÕES DE DEFORMAÇÃO 3.1 – Dobra Para operações de dobra em “V” não é recomendada a utilização de prensas excêntricas, pois a força final de dobramento se torna incontrolável e muito perigosa para a máquina. A operação de dobra em “V” pode ser considerada em dois estágios: O primeiro corresponde ao dobramento de uma viga sobre dois apoios devido a flexão e o segundo corresponde a força de compressão suportada pela matriz e que garante a eficiência da dobra. A - Cálculo da força de dobramento. Onde: P = força de dobramento. la = abertura da matriz. lb = comprimento da dobra. e = espessura da chapa. σd = tensão de dobra. ω = módulo de resistência. sendo: σd = M ω M = P . la 4 ω = Jy = lb . e³ / 12 = lb . e² y e / 2 6
  • 62.
    - Fatec -So - Tecnologia de estampagem - - 63 - Substituindo temos: Devido a dificuldade de se obter o valor correto de σd, costuma-se trabalhar com σr (tensão de ruptura). Nota: Segundo Schuler e Cincinati; σd = 2 . σr, isto é, a tensão de dobra é o dobro da tensão de ruptura à tração, porém para dobras a 90° com la / e ≤ 10 não se aplica esta definição. I - Caso Se a ferramenta é como a figura do caso 2 (compressão), a força de dobra é dada por: P = 2 . lb . e² . 2 .σr σr = tensão de ruptura (kgf/mm²) 3 la e = espessura da chapa (mm) la = abertura da matriz (mm) lb = comprimento da dobra(mm) I – Exemplo Qual é a força necessária para dobrar em ângulo reto uma tira de 1m de comprimento, espessura de 3mm , σr = 40 kgf/mm² e a abertura ''V'' = 50mm. Dados: lb = 1000mm la = 50mm σr = 40 kgf/mm² σd = 2 . σr = 2 . 40 = 80 kgf/mm² Resolução: P = 2 . lb . e² . 2 .σr = 3 la P = 2 . 1000 . 3² . 2 .40 = 9600 kgf 3 50 Abertura da matriz da dobra A força necessária para efetuar dobras em ângulos retos, em presas depende de: a- espessura e natureza do material b-raio de curvatura e largura do “V” de apoio. A força de dobra é inversamente proporcional ao raio de curvatura e a largura de abertura do V”. σd = P . la . 6 4 . lb . e² P = 2 . lb . e² . σd 3 la
  • 63.
    - Fatec -So - Tecnologia de estampagem - - 64 - Em geral: l = 15 a 20e B - Raio mínimo na dobra. A observação do raio mínimo na dobra interna é fundamental para a operação de dobramento. De acordo com a característica e espessura do material, deve ser escolhido o raio para o punção e para a matriz. Na falta de valores específicos (DIN 9635), podemos usar os seguintes valores: C – Retorno elástico (springback) Devido à elasticidade do material,depois da operação de dobra, a peça obtida tende readquirir a forma primitiva, isto é, tende a “reendireitar”. Isto acontece por causa da deformação elástica remanescente que precede a deformação plástica permanente. Na execução das ferramentas, poderá ser levado em conta este fenômeno, dando ângulos de dobra mais fechados do que os da peça, de maneira que, depois do retorno elásticos ângulos ficarão os desejados. Não existe cálculo para determinar a diminuição dos raios e dos ângulos; é feito por tentativa, por meio de provas e experiências. Apenas para orientação, podemos considerar que, para compensar o efeito do retorno elástico e se obter o produto com curvatura r' e a dobra seja feita com ângulo α, é necessário que o punção apresente um raio r’ e a dobra seja feita com ângulo α’ : Material Raio Aço r = (1 a 3)e Cobre r = (0,8 a 1,2)e Latão r = (1 a 1,8)e Zinco r = (1 a 2)e Alumínio r = (0,8 a 1)e Ligas de Alumínio r = (0,9 a 3) e
  • 64.
    - Fatec -So - Tecnologia de estampagem - - 65 - r’ = k(r+0,5e) – 0,5e α’ = kα O retorno elástico depende do material e da relação r/e . É maior nos materiais mais duros . Valores de k Exemplo: Determinar o raio do punção e o ângulo de dobra para a peça em figura.Material : aço inox. 18 – 18. Pelo diagrama sendo r = 5 = 2,5 .·. k =0,85 e 2
  • 65.
    - Fatec -So - Tecnologia de estampagem - - 66 - r’ =k(r+0.5e) – 0.5e = 0.85(5+0.5 x 2) – 0.5 x 2 = 4,1 mm α’ = kα = 0.85 x 90 = 76,5° = 76° 30’ Observações: Na dobra de perfis em “U”,os punções são executados com fundo levemente côncavo, para compensar a ação elástica do material que tende a abrir o ângulo da dobra. Devido a impossibilidade de previsões exatas dos punções e matrizes das ferramentas de dobra serão temperados somente depois de acertados os ângulos e os raios de curvatura. O acerto é feito por tentativas, isto é, estampando algumas peças com a ferramenta ainda não temperada e retificada. Nas ferramentas em “V”, a ação elástica do material é vencida, quebrando o “nervo” do material com uma pancada a fundo na zona de deformação do material. O punção será rebaixado conforme o desenho. Nas ferramentas em “V”, além do artifício citado, podemos recorrer à diminuição de α ou de r.
  • 66.
    - Fatec -So - Tecnologia de estampagem - - 67 - D - Cálculo do comprimento desenvolvido. A camada de material que na dobra não sofre deformações de recalque ou de estiramento é chamada de Linha Neutra (L.N.). No dobramento, devido aos materiais se deformarem mais a tração do que a compressão, a Linha Neutra em geral não coincide com o centro (de gravidade geométrica) da secção da peça. Em geral quando a relação r/e for maior que 4 a L.N. coincide com a linha dos centros de gravidade da secção.
  • 67.
    - Fatec -So - Tecnologia de estampagem - - 68 - Valores de K (Função da Relação r/e) r/e ≥ 0,5 ≥ 0,65 ≥ 1 ≥ 1,5 ≥ 2,4 ≥ 4 K 0,5 0,6 0,7 0,8 0,9 1 EXERCÍCIOS: 1− Calcule o comprimento total desenvolvido (Lt), da peça abaixo: L = a + b + π (r + e x K) β 2 180°
  • 68.
    - Fatec -So - Tecnologia de estampagem - - 69 - Resolução: 2- Conforme figura abaixo calcule: Dados: (σr = 30kgf/mm²) a) Abertura da matriz;. b) Comprimento desenvolvido; c) Força de dobramento; d) Esquematizar a matriz; e) Distância entre apoios.
  • 69.
    - Fatec -So - Tecnologia de estampagem - - 70 - E - Dobras de Perfil em ‘U’ Nas dobras de perfil em U as forças necessárias estão de acordo com a construção da ferramenta. Em primeiro plano temos como influência a folga ente o punção e a matriz, e em segundo plano a forma das entradas da matriz nos pontos de apoio do material. A folga deve ser escolhida, suficientemente grande de forma que não haja estiramento do material, e sim apenas as dobras nos raios internos. Raios internos das dobras (tanto na peça como na matriz), devem ser no mínimo igual a espessura do material. Nas dobras de perfis em “U” sem pisadores tornam-se os fundos abaulados, que em parte necessitam de grandes forças para a sua planificação. As forças para planificar o fundo no fim do dobramento podem alcançar valores de até duas vezes e meia a força de dobramento normal. Força de dobramento sem planificação de fundo Onde: lb = Comprimento da dobra.(mm) σd = Tensão de dobra ??? Força de dobramento com planificação de fundo Onde: l b = Comprimento da dobra.(mm) σd = Tensão de dobra P = 1,2 . lb . e² . σd ≈ 1,2 . lb . e² . σd . ε u u ε ≈ 2,5 P = 2 . lb . e² . σd 3 u u ≥ 2 . e
  • 70.
    - Fatec -So - Tecnologia de estampagem - - 71 - Força de dobramento com utilização de pisadores ou sujeitadores EXERCÍCIO: 1 - Calcular a força necessária para dobrar em ' u', 1 m de chapa de aço com σr = 40kgf/mm² e espessura e = 3mm+/-0,1; em ferramentas de dobrar tipo matriz e punção. a) Calcular sem planificação de fundo. b) Calcular com planificação no fundo. c) Calcular com prensa-chapa Força do pisador ou sujeitador = 25% da força para dobramento.
  • 71.
    - Fatec -So - Tecnologia de estampagem - - 72 - Tensão de Dobra σd = 2σ e = Espessura da chapa σr = Tensão de ruptura a tração. I- Caso Se a ferramenta é como a figura abaixo Fd = 1 . σd . e .b 6 A peça a ser dobrada se considera como uma viga engastada com balanço l = e. Exemplo: Para dobrar uma cantoneira de aço com σr = 40Kgf/mm², 1m de comprimento e 3mm de espessura, é necessária a fora de: Fd = 1 . σd . e .b == 1 . 2 . 40 . 3 . 1000 = 1000 =40.000Kg 6 6 Força de dobra para de aço com σr = 40Kgf/mm² σd = 2σr 80 Kgf/mm² Fd = σd be = 80 be = 13,33be 6 6
  • 72.
    - Fatec -So - Tecnologia de estampagem - - 73 - Exemplo Para dobrar uma tira de aço com σr= 40Kgf/mm² B=50mm, e = 4,5mm é preciso uma força Fd = 3000 Kg. II- Caso Para dobras bilaterais o cálculo é análogo ao caso I isto é: Fd =2 . 1 . σd . e .b 6
  • 73.
    - Fatec -So - Tecnologia de estampagem - - 74 - Nota : a- Se o extrator for acionado por molas e força de dobra deverá ser aumentada da força de deformação elástica das molas do extrator, que em geral é da ordem de 0,1 Fd. b- Nas ferramentas de dobra as bordas da matriz deverão ser arredondadas para permitir o livre escorregamento da chapa. Este particular proporciona um melhor produto com menor esforço. Para e = ≤ 6mm a = 4,5 e Segundo Kaczmareck o valor da força de dobra é: Fd = 1 . σd . e² . b , em que 3 a σd = 18 σr para σr = 30 ÷ 35 Kgf/mm² 20 σr para σr = 32÷ 52 Kgf/mm² DEVEM SER EVITADAS DOBRAS EM “V” OU EM “U” em prensas excêntricas, pois uma regulagem deficiente provocaria a ruptura da prensa.
  • 74.
    - Fatec -So - Tecnologia de estampagem - - 75 - Exemplo 1 Calcular a força necessária para dobrar em “U”, 1m de chapa de aço com σr = 40 kg/mm² e espessura e = 3mm, em ferramenta com extrator de mola. a- Força de dobra Fd = 2 ( 1 . σd . e . b ) = 2 ( 1 . 40 . 3 . 1000) = 80000 Kg 6 6 b- Força do extrator Fex = 0,1 F = 0,1 . 80000 = 8000 Kg c- Força total Ft =Fd ÷ Fex = 80000 ÷ 8000 = 88000Kg F - Estampos de Enrolar A operação de enrolar pode ser efetuada por vários métodos. Enrolar no punção Enrolar na matriz Nos dois casos acima a peça deve ter uma pré-dobra para iniciar o desenvolvimento. 3.2 - Repuxo Na operação de repuxo obtem-se peças ocas partindo-se de placas ou chapas planas. Durante a operação de repuxo o material sofre esforços de compressão (nas bordas da matriz) e esforços de estiramento.
  • 75.
    - Fatec -So - Tecnologia de estampagem - - 76 - Na operação de repuxo praticamente a espessura da peça se mantém igual a do Blanque. A - Cálculo do Diâmetro do BLANQUE Peças com formas de corpos de revolução, o blanque pode ser calculado de duas formas: pelo processo de igualdade das áreas ou pelo método do baricentro do perímetro. Exemplo: Calcular o diâmetro do blanque para a peça da página abaixo: Processo pela igualdade das áreas. Ou seja Sblanque = Σ Scírculo + Scilindro π . D² = π . d1 . h1 + π . d1² 4 4
  • 76.
    - Fatec -So - Tecnologia de estampagem - - 77 - π . D² = 4π . d1 . h1 + π . d1² 4 4 D² = 4d1 . h1 + d1² D = √4d1 . h1 + d1² D = √4 . 100 . 50 + 100² D = √30000 D = 173,205mm ou ainda: S = π . d1 . h1 + π . d1² S = π .100 . 50 + π .100² 4 4 S = 15707,96 + 7853,98 S = 23561,94 como S = π x D² 4 então temos: π . D² = 23561,94 π . D² = 4 . 23561,94 4 D² = 4 . 23561,94 D² = 30000 π D = √30000 = 173,205mm - Método do Baricentro do Perímetro (Processo Analítico) Calculo pelo centro de gravidade das figuras: π . D² = 2π . R1 . L1 + 2π . R2 . L2
  • 77.
    - Fatec -So - Tecnologia de estampagem - - 78 - 4 π . D² = 4 . 2π (R1 . L1 + R2 . L2) D² = 8 (Σ Ri . Li) D = √8 (Σ Ri . Li) D = √8 (50 . 50 + 25 . 50) D = √30000 D = 173,205mm Este processo é o mais utilizado pois pode utilizar a fórmula D = √8 (Σ Ri . Li), para qualquer que seja o repuxo que quisermos determinar o diâmetro do blanque. A sequência do calculo é: 1°- Dividir o repuxo em figuras regulares como cilindros, discos, anéis, etc. 2°- Determinar o C.G de cada figura e a distância destes até o centro da peça (Ri) 3°- Determinar o comprimento desenvolvido de cada parte na seção mostrada (Li) 4°- Aplicar a fórmula: R² = 2π . R . m x Σ li B - Repuxo em vários estágios Peças com grandes profundidades de repuxo devem ser repuxados em várias operações: O número das operações depende da profundidade de repuxo e das características de estampabilidade do material da chapa. Coeficiente de repuxo - O coeficiente de repuxo fornece a menor relação entre o diâmetro do punção e o diâmetro do blanque (ainda peça intermediária) em função do material da chapa. m ≤ d1 ( m = coeficiente para 1° operação) D m1 ≤ dn ( m1 = coeficiente para demais operações) dn – 1 Material m m1 Aço para repuxo 0,60 – 0,65 0,80 Aço para repuxo profundo 0,55 – 0,60 0,75 – 0,80 Aço para carroceria 0,52 – 0,58 0,75 – 0,80 Aço Inoxidável 0,50 – 0,55 0,80 – 0,85 Cobre 0,55 – 0,60 0,85 Latão 0,50 – 0,55 0,75 – 0,80 Alumínio Mole 0,53 – 0,60 0,8 Duralumínio 0,55 – 0,60 0,9
  • 78.
    - Fatec -So - Tecnologia de estampagem - - 79 - Exemplo 1: Determinar o diâmetro do disco e o número de operações necessárias para obtermos um recipiente cilíndrico de chapa de aço inoxidável com as dimensões da figura. Obs: Deixar 3% de sobremetal do blanque para usinagem posterior da altura, arredondar para o número inteiro mais próximo. Pela tabela temos: m = 0,55 m1 = 0,85 Diâmetro do blanque. D = √4d1 . h1 + d² D = √4 . 72 . 56 + 70² D = √21028 D = 145,01 Da = 1,03 . 145,01 Da = 149,36 Da ≈ 149mm Número de operações: d1 = Da . m d2 = d1 . m1 d1 = 149,055 d2 = 81,95 . 0,85 d1 = 81,95mm d2 = 69,65 = 70mm h1 = Da² – dm²1 h2 = Da² - dm²2 4 . dm1 4 . dm2 h1 = 149² – 83,95² h2 = 149² - 72² 4 . 83,95 4. 72 h1 = 15153,39 h2 = 17017 335,8 288 h1 = 45126mm h2 = 59,086mm Exercício: 1 - Determinar o número de operações de repuxo e as respectivas profundidades para estampagem da peça abaixo: Calcular o diâmetro do blanque pela igualdade das áreas:
  • 79.
    - Fatec -So - Tecnologia de estampagem - - 80 - 2 – Calcular o diâmetro do blanque para a peça abaixo: Material – aço para repuxo profundo Material – Latão 0,5m 0,8m1
  • 80.
    - Fatec -So - Tecnologia de estampagem - - 81 - Exemplo 2: 1- Determinar o blanque. (dois processos) 2- Calcular o número de operações e como são feitas. Obs: Deixar 5% de sobremetal no blanque para usinagem posterior da altura.(arredondar % para o n° inteiro mais próximo para mais ou para menos) Resolução: 1- Cálculo do blanque S1 = π . d1 . h1 S1 = π . 52 . 48 = 7841,41 S2 = 2π . r² + π² . r . d onde d = 50 – (2 . 2) = 46 2 S2 = 2π . 3² + π² . 3 . 46 = 56,54 + 681 = 737,54 2 S3 = π . d² S3 = π . 46² = 1661,85 Material – Latão 0,5m 0,8m1
  • 81.
    - Fatec -So - Tecnologia de estampagem - - 82 - 4 4 Speça = 7841,41 + 737,54 + 1661,85 = 10240,85 Sblanque = Speça π . D² = 10240,85 π . D² = 4 . 10240,85 D² = 40963,4 D = √13039,05 4 π D = 114,18 mm Pelo processo analítico: CG (raio) = 0,635 . 3 = 1,9 mm Perímetro = 2π . r / 4 = 2π . 3 = 4,71 mm D = √ 8 (Σ Ri . Li) D = √8 (26 . 48 + 24,9 . 4,71 + 11,5 . 23) D =114,18 mm Da = 1,05 . 114,18 = 120mm d1 ≥ 120 . 0,5 = 60mm d2 ≥ 120 . 0,8 = 48mm d2 = 50mm Exercício: 1- Determinar o diâmetro do blanque. 2- Determinar o número e como serão as operações. Material – Aço Inoxidável 0,55m 0,85m1
  • 82.
    - Fatec -So - Tecnologia de estampagem - - 83 - 3.3 Etapas do Repuxo 1- Análise do Produto 2- Desenvolvimento do Blanque 3- Número de Estágios necessários 4- Força de Repuxo 5- Sujeitadores 6- Extratores 7- Punções e Matrizes / Folga 8- Componentes do Primeiro Repuxo 9- Componentes dos demais Repuxos / Localizadores 10- Guias Flutuantes A - ANÁLISE DO PRODUTO Analisar o desenho do Produto com relação à: - Raios: Dimensões, proporção com a espessura, posição geométrica. - Tolerâncias: Definem a precisão necessária às ferramentas - Geometria: Permite uma previsão do processo interno da ferramenta e definição do número de estágios necessários. B – DIÂMETRO DO DISCO Uma das maneiras mais precisas de se calcular o diâmetro do Disco de Blanque, para peças de repuxo cilindrico, é o método do volume. Temos abaixo algumas formulas mais usuais para o cálculo manual: Figura 1 D=√d1²+4.d.[h+0,57(R+r)]
  • 83.
    - Fatec -So - Tecnologia de estampagem - - 84 - Figura 2 Figura 3 V1= π.h.(D²-d²)/4 ou V1= π.h.(R²-r²) Figura 4 V2 = ((π*D²)/4) * e ou V2= π * R² * e Vt = V1+ V2+Vn D = √[(4*Vt)/( π*e)]
  • 84.
    - Fatec -So - Tecnologia de estampagem - - 85 - Atualmente uma maneira bastante precisa de obter-se o volume é modelarmos a peça em CAD 3D, como Pro-E, SolidWorks, Inventor, etc. Devemos porém tomarmos um cuidado especial com relação aos raios externos da peça, pois sabemos de antemão que existe uma deformação nesta região em função da tração nas fibras do material no momento do repuxo. A proporção exata desta deformação só poderá ser obtida através de testes práticos, pois em um mesmo material podem ocorrer diferenças em função de variações do processo do repuxo e de fabricação do material. Um acréscimo de cerca de 20% na medida do raio externo pode ser adotado para minimizar este efeito. C – NÚMERO DE ESTÁGIOS Dependendo da análise da geometria da peça, ou seja, da proporção entre a altura repuxada e o diâmetro, veremos que não é possível se obter a peça pronta em uma única operação de repuxo, portanto temos que verificar quantos estágios de repuxo será necessário para fabricarmos a peça sem comprometermos as propriedades mecânicas do seu material. A redução de diâmetro com conseqüente aumento na altura deve seguir o seguinte sistema: onde: Obs.: A partir do segundo Repuxo há necessidade de furos de saída de ar nos punções, para evitar deformações. D – FORÇA NECESSÁRIA PARA O REPUXO O repuxo é realizado na região plástica do diagrama Tensão-Deformação do material. Usaremos a seguinte fórmula: Fr = K* π *d*e*σt*1,25 onde: Fr = Força de Repuxo d = Diâmetro do Punção e = Espessura do material σt = Tensão de tração para repuxo 1,25 = Fator de correção K = Obtido através da relação entre d e D (onde D = Diâmetro do Disco de Blanque) d/D 0,55 0,575 0,6 0,625 0,65 0,675 0,7 0,725 0,75 0,775 0,8 K 1,0 0,93 0,86 0,79 0,72 0,66 0,6 0,55 0,5 0,45 0,4 Obs.: Para peças não cilíndricas substituir π*d pelo perímetro da peça. d1 = 0,6*D h1 = 0,266*D d2 = 0,48*D h2 = 0,401*D d3 = 0,384*D h3 = 0,555*D d4 = 0,307*D h4 = 0,737*D d5 = 0,245*D h5 = 0,959*D d6 = 0,796*D h6 = 1,225*D
  • 85.
    - Fatec -So - Tecnologia de estampagem - - 86 - E - SUJEITADORES O sujeitador é utilizado principalmente no primeiro estágio do repuxo, para manter uma pressão específica sobre o blanque, evitando assim o enrugamento da chapa do blanque a ser repuxado durante a operação. O enrugamento ocorrerá se a pressão de sujeição não for suficiente para manter a chapa apoiada na matriz. Por outro lado se a pressão for excessiva ocorrerá o estiramento do material, pois a chapa terá dificuldade para “Escorregar” para dentro da matriz. Evidentemente a superfície do sujeitador que entra em contato com a chapa deverá ser devidamente polida e o material tratado termicamente para este fim. Cálculo da força de sujeição: P = F / A => Fsj = P . A Onde: Fsj = Força de sujeição P = Pressão específica = 0,1 a 0,2 Kgf/mm² A = Área de contato entre o sujeitador e o blanque. Obs.: Para ferramentas de baixa precisão ou aplicação grosseira usa-se de maneira genérica: Fsj = 0,3 . Fr onde: Fr = Força de repuxo F – EXTRATORES Os extratores têm a função de retirar o produto de dentro das matrizes e/ou dos punções. Genericamente usa-se: Fex = 0,1 . F onde: F = Força da operação (corte, repuxo, etc.) G – FOLGA ENTRE PUNÇÕES E MATRIZES A folga necessária entre punção e matriz para repuxo deve levar em conta a espessura da chapa a ser repuxada, mas tem uma pequena variação para chapas finas, até aproximadamente 1,5mm e as de maior espessura: p/ chapas finas: Fpm = e p/ chapas grossas Fpm = e + t + 20% tol máx. onde: Fpm = Folga entre punção e matriz e = Espessura da chapa a ser repuxada t = Tolerância da espessura da chapa 20% tol máx. = 20% da tolerância máxima da chapa Exemplo: Para uma chapa com espessura de 5mm com tol. ±0,2: Fpm = 5 + 0,2 + 0,04 = 5,24mm
  • 86.
    - Fatec -So - Tecnologia de estampagem - - 87 - H – COMPONENTES DO PRIMEIRO REPUXO Lista de componentes essenciais para o primeiro repuxo. Em ferramentas progressivas podem ser necessários outros componentes adicionais. - Punção - Matriz - Localizador (para o blanque) - Sujeitador - Extrator Inferior (Matriz) - Extrator Superior (Punção) - Porta – Punção - Porta – Matriz - Base superior e inferior e colunas, buchas de guia, etc., se ferramenta individual I – COMPONENTES DOS DEMAIS ESTÁGIOS DE REPUXO A lista é muito semelhante à anterior, com pequenas diferenças citadas abaixo: - O localizador para o blanque e o sujeitador serão substituídos por um Posicionador, que terá a função de penetrar na peça já repuxada na operação anterior para posicioná-la com precisão em relação à matriz. Uma deficiência neste posicionamento pode ocasionar um repuxo descentralizado em relação ao anterior causando imediatamente uma variação na altura e na espessura da peça, devido ao escoamento irregular do material para dentro da matriz. Este item será estudado posteriormente em detalhes, pois além desta função, também tem a finalidade de extrair a peça do punção após o repuxo. J – GUIAS FLUTUANTES As guias flutuantes são um recurso muito usado em ferramentas progressivas que envolvem repuxo, pois se a fita não for elevada após a operação de repuxo, não há como transportá-la para o próximo estágio. Em todos os itens aqui estudados estamos considerando um sistema convencional de repuxo, em prensas excêntricas. Existem máquinas especiais, do tipo “Transfer”, por exemplo, que são desenvolvidas especialmente para repuxar peça e trabalha em alguns casos com “Repuxo Invertido”, ou seja, as matrizes estão na parte superior do estampo e os punções na parte inferior. Nestas máquinas o transporte das peças para o próximo estágio são feitos por um sistema de transporte exclusivo; daí o nome “Transfer”. K - Escolha da Prensa – Força Total Como fator de segurança recomenda-se acrescentar 20% à Força total da operação, para escolha da máquina necessária, que é dada por: Ft = (Fr +Fsj +Fex)*1,2 onde: Ft = Força total da operação (ou do estágio) Fr = Força para Repuxo Fsj = Força para Sujeição Fex = Força de Extração 1,2 = Fator de segurança
  • 87.
    - Fatec -So - Tecnologia de estampagem - - 88 - A força de repuxo pode oscilar devido a variações no sistema de lubrificação das chapas, polimento dos punções e matrizes, variações de dureza e propriedades mecânicas da chapa ao longo da bobina, Temperatura da máquina, etc. Os métodos mais comuns de lubrificação de fitas para repuxo são: - Óleos minerais ou vegetais - Graxas - Sabão Também é comum em produções seriadas a aplicação de uma camada de fosfato na face da fita que entrará em contato com a matriz. Esta camada associada à lubrificação reduz bastante o atrito, facilitando o repuxo. Os repuxos realizados com deficiência de lubrificação alem de causar um acréscimo da força necessária para a operação, acarreta também um fenômeno chamado “Estiramento”, que é a redução da espessura da chapa, de maneira irregular. Este estiramento deforma o material aumentando a altura da peça ou reduzindo a quantidade de material que deveria escoar para dentro da matriz, comprometendo desta forma a geometria final do produto. Além disso, causa uma fragilidade estrutural no material, podendo causar trincas e até, em casos mais drásticos, a ruptura do fundo da peça, pois o estiramento normalmente se torna mais acentuado na região dos raios. --------------------------------- 4 – FERRAMENTAS DIVERSAS Esta denominação necessita de certa lógica para evitar confusões. Se a ferramenta efetua várias operações, poderá ser útil mencionar cada uma delas, indicando eventualmente a ordem na qual irão ser efetuadas. 4.1- Classificações das Ferramentas Podem ser classificadas as ferramentas, inicialmente, pelas operações que efetuam; temos assim: a) Ferramentas de corte; b) Ferramentas para deformação; c) Ferramentas de embutir ou repuxar; Em outros casos as ferramentas podem combinar várias operações, temos assim: d) Ferramentas combinadas. Classificação: a) Ferramentas de corte Estas ferramentas podem ser classificadas pelo tipo de trabalho: - ferramenta de corte simples; - ferramenta de corte progressivo; - ferramenta de corte total. Pelas formas da ferramenta: - ferramenta de corte; aberta (para corte simples); - ferramenta de corte coberta ou com placa-guia (para corte simples ou progressivo); - ferramenta de corte com colunas (para corte simples, progressivo ou total);
  • 88.
    - Fatec -So - Tecnologia de estampagem - - 89 - - ferramenta de corte com guia cilíndrica (para corte total). b) Ferramentas para deformação A classificação destas ferramentas pode ser feita somente em função do serviço a ser realizado: - ferramenta de dobra em V, U ou L; - ferramenta de enrolar (extremo ou total) - ferramenta de aplainar - ferramenta de estampar c) Ferramentas de Embutir ou Repuxar Classificam-se pelo tipo de trabalho: - ferramenta de repuxo sem prendedor de chapa (para repuxo de ação simples) - ferramenta de repuxo com prendedor de chapa (para repuxo de ação dupla), para prensas se simples e duplo efeito. d) Ferramentas Combinadas Apresentam-se sob formas diversas, sendo possível classificá-las em: - ferramentas combinadas totais; - ferramentas combinadas progressivas. Ferramenta de Estampo Progressivo de Corte, Dobra e Repuxo
  • 89.
    - Fatec -So - Tecnologia de estampagem - - 90 - 4.2 - Elementos Normalizados Bases
  • 90.
    - Fatec -So - Tecnologia de estampagem - - 91 - Buchas Guias e Mola Colunas
  • 91.
    - Fatec -So - Tecnologia de estampagem - - 92 - 5- EQUIPAMENTOS 5.1 - Prensas No trabalho dos metais em chapas, as máquinas usadas são denominadas “PRENSAS”. A classificação destas máquinas é feita observando o funcionamento e os movimentos. Em 1º lugar se distinguem: - Prensas Mecânicas; - Prensas Hidráulicas. Em cada um destas categorias, os movimentos de que são dotadas essas prensas permitem diferenciá-las em: 1- Prensas de simples ação, ou seja, com um só movimento (mais usual); 2- Prensas de dupla ação, ou seja, com dois movimentos; 3- Prensas de tripla ação. Citaremos somente a de simples ação. Neste tipo de prensa é possível diferenciar: 1 – pela sua função: a) prensas para cortar e embutir; b) prensas para dobrar e puncionar c) prensas de forja. 2 – pelo seu comando: a) prensa de balancim manual; Trabalho de corte, dobra, embutição ou estampagem que não precisam grandes esforços. b) prensa de fricção; Trabalho de forja, estampagem e dobra. c) prensa de excêntricos; (mais usual) Trabalho de corte, dobra, embutição ou estampagem de diversos esforços. d) prensa de virabrequim; Trabalho de corte, dobra, embutição ou estampagem, mas que constitui um virabrequim. e) prensa de rótula. Trabalho de corte, dobra, embutição ou estampagem, com diferente acionamento do cabeçote. A - Características das Prensas Para definir uma prensa devem ser indicadas as características que se seguem: - tipo; - força máxima em toneladas e trabalho; - percursos; - distância entre mesa e cabeçote; - potência do motor; - dimensões externas. Ademais, o fabricante deve definir sempre as dimensões das fundações previstas para instalação da máquina. Prensas Mecânicas: Para prensas de pequena e média potência, pode ser executado em ferro fundido, aço fundido ou em chapas de aço soldadas. Esta armação aberta por três lados, permite a passagem lateral da fita. Possuem mancais na parte superior, guias verticais e uma mesa para fixação das ferramentas. Os principais tipos são: balancim, fricção, excêntrica, virabrequim, rótula.
  • 92.
    - Fatec -So - Tecnologia de estampagem - - 93 - Prensas Hidráulicas: estas se diferenciam somente das precedentes pelo comando do cabeçote. São de uma ou várias colunas e a armação é de ferro fundido ou de chapas de aço soldadas. A vantagem destas prensas reside na facilidade existente para se regular a pressão do óleo, o que permite utilizar somente a força necessária e que esta seja controlada. B - Escolha da Prensa Conveniente Para se escolher uma prensa para uma determinada operação, devemos conhecer as características das prensas de que dispõe. Para um trabalho a se realizar devem ser determinados: 1 - a força (em toneladas) necessária; 2 - o trabalho (em quilogrâmetros) necessário; 3 - as dimensões da ferramenta; 4 - o percurso necessário; 5 - o modo pelo qual se deve trabalhar (golpe a golpe ou em continuação). Estas especificações vão tomar a escolha mais fácil. A primeira permite que se determine a força exigida da prensa. A segunda fixa a escolha entre uma prensa de comando direto ou com aparelhos. A terceira permite assegurar a possibilidade de montagem das ferramentas. Para a escolha de uma prensa, deve-se evidentemente ter em conta o tipo de trabalho a ser executado. Os trabalhos de corte podem ser realizados em todos os tipos de prensas de simples efeito. As dobras deverão ser efetuadas em prensas excêntricas, prensas de fricção, ou em prensas especiais para dobrar. A escolha é mais delicada para trabalhos de embutição. As prensas de duplo efeito, com mesa móvel, deverão ser utilizadas para trabalhos embutição cilíndrica profunda em chapas finas. As prensas hidráulicas permitem grandes pressões a grandes profundidades. As prensas de simples efeito, providas de almofada pneumática, podem ser utilizadas como prensas de embutir. Estas prensas permitem exercer grandes pressões de deformação e maior produção. C - Dispositivos de Proteção As prensas são máquinas perigosas para as mãos dos operadores, por esta razão são empregados diversos dispositivos para que se aumente a segurança, no trabalho. Uma das mais simples é que se obrigue a utilizar as duas mãos para o comando, o que evita que o operário deixe uma das mãos debaixo do cabeçote (bi-manual). Nas grandes prensas, manejadas por vários operadores, dispositivos elétricos no comando obrigam-lhes a utilizar as mãos na manobra. Algumas prensas têm uma pantalha protetora, a qual deve ser descida, a fim de acionar a máquina. Este movimento força o operário a retirar as mãos da zona perigosa.
  • 93.
    - Fatec -So - Tecnologia de estampagem - - 94 - Modelos de algumas máquinas:
  • 94.
    - Fatec -So - Tecnologia de estampagem - - 95 - A - Esquema de Repuxo e Estampo Progressivo Estampo Progressivo Peça Estampada na Ferramenta ao lado 5.6 - Dobradeira Faca Canal chapa
  • 95.
    - Fatec -So - Tecnologia de estampagem - - 96 - Dobradeira Amada FBD 3 – 8025NT Dobrando uma chapa Peça Dobrada Este modelo é um marco no sistema de dobramento automático completamente diferente em conceito de qualquer sistema convencional. Possui programação simplificada e permite o sistema de conferência no perfil da parte fabricada como também qualquer interface. Também podem ser executadas modificações de usuário para o programa antes de processar. O sistema é projetado para prover dobramento para cima e para baixo de 180 a 45 graus. Ele processa produtos novos sem perda de tempo pela organização de operações. Considerando que não requer nenhum óleo hidráulico, o este mantém um ambiente de trabalho limpo. Com automatização Integrada, é desenvolvido para aumentar produtividade idealmente enquanto reduzindo custos em uma variedade de loja que processa métodos. O sistema também pode ser ampliado e pode ser integrado com outro equipamento do mesmo fabricante. 5.7 - Automação em Prensas Desbobinador Endireitador Prensa Sistema de Automação projetada por Stampco-Setrema Neste sistema de automação acima, consiste três equipamentos: - Desbobinador - Endireitador - Prensa Hidráulica (descrito no item 3.1) A - Desbobinador para Fitas Destinados ao processamento de materiais em rolos / bobinas. Podem ser fornecido com mandril único ou duplo, eixo com ponta lisa para carretéis ou base giratória para desenrolamento direto de “pallets”.
  • 96.
    - Fatec -So - Tecnologia de estampagem - - 97 - Desbobinador c/Mandril Único Desbobinador c/ Mandril Duplo Características técnicas • Expansão do diâmetro manualmente acionada • Suportes laterais para sustentação e guiamento do material • Freio de inércia para controle do desbobinamento (modelo sem motorização) • Acionamento por motorredutor (modelo com acionamento) • Velocidade variável por inversor de freqüência • Seletor para reversão do sentido de rotação • Sensor eletrônico para controle de laço - “looping” (modelo com acionamento) Acessórios opcionais • Braço pneumático com rolo pressor • Freio de inércia de atuação pneumática • Controlador de laço por ultrasom ou sensores fotoelétricos • Expansão hidráulica do mandril • Carro transportador / elevador de bobinas • Telas de proteção conforme PPRPS • Rolos cônicos para guiamento lateral do material B - Endireitadores para Fitas São destinados ao processamento de materiais contínuos em fitas. Podem ser fornecidos em conjunto com desbobinadores em gabinete único (montagem compacta). Endireitadora c/ Abertura Manual Endireitadora c/ Abertura Hidráulica Características técnicas • Rolos puxadores para tracionamento do material • Regulagem da pressão dos rolos tracionadores por molas • Número de rolos endireitadores: (05) cinco ou (07) sete • Ajuste individual da posição dos rolos endireitadores superiores
  • 97.
    - Fatec -So - Tecnologia de estampagem - - 98 - • Comando por inversor de freqüência • Sensor eletrônico para controle do laço (“looping”) • Seletor no painel para modo de operação “Automática / Manual” • Guia fita na entrada / cesto de rolos na saída do material Acessórios opcionais • Abertura manual ou hidráulica do cabeçote endireitador (introdução da ponta) • Controlador de laço por ultrasom ou sensores fotoelétricos • Abertura pneumática para os rolos tracionadores • Mesa articulada para introdução da ponta da bobina • Rolo pré-endireitador para preparação
  • 98.
    - Fatec -So - Tecnologia de estampagem - - 99 - Anexo Aços ferramentas - Trabalho a quente VILLARES METALS SIMILARES DESCRIÇÃO APLICAÇÃO TENAX 300 H11 (MOD.) 1.2343 Matrizes para fundição sob pressão de ligas não ferrosas, como ligas de Al; nesta aplicação, recomenda-se o TENAX 300 IM. Matrizes e punções de forjamento com geometria complexa ou submetidas a trincas. Espinas para extrusão a quente de ligas não ferrosas, principalmente Al. TENAX300IM H11 (MOD.) 1.2343 Refundido Moldes e componentes para fundição sob pressão de ligas de alumínio e outras ligas não ferrosas, como zinco, estanho e chumbo. Matrizes para extrusão de ligas de alumínio, latão e ligas de magnésio. Matrizes e punções para forjamento. Moldes de injeção de termoplásticos não clorados, e para facas a quente. VHSUPER IM 1.2367 (MOD.) Refundido Matrizes e punções para forjamento, incluindo aplicações de recalque a quente e insertos. Facas a quente. Matrizes para extrusão de ligas de alumínio, latão e ligas de magnésio. Matrizes e componentes para fundição sob pressão de ligas de alumínio e outras ligas não ferrosas, como zinco, estanho e chumbo. VHSUPER 1.2367 (MOD.) Matrizes e punções para forjamento a quente em prensa. Matrizes para fundição sob pressão de ligas não ferrosas; nesta aplicação, recomenda-se a versão IM. Matrizes de extrusão de ligas de Al e ligas de Cu. VH13ISO H13 1.2344 Aplicações típicas: Matrizes e punções de forjamento em prensa. Punção para extrusão de ligas não ferrosas. Moldes para fundição por gravidade de ligas leves, especialmente Al. Facas para corte a quente. Matrizes para fundição sob pressão de ligas de alumínio, em peças de menor porte ou pouco complexas.
  • 99.
    - Fatec -So - Tecnologia de estampagem - - 100 - VH13IM H13 1.2344 Refundido Moldes para fundição por gravidade de ligas leves, especialmente ligas de Al e Mg, em peças complexas ou de maior porte. Moldes para injeção de polímeros termoplásticos, com alto grau de polimento e alta resistência mecânica. Matrizes de alto desempenho para forjamento em prensa. VMO 1.2714 Aço com boa resistência mecânica a quente, destacando-se sua alta tenacidade. Comumente aplicado em: Matrizes para forjamento em martelo. Matrizes de grandes dimensões para forjamento em prensa. Porta-matrizes. Suporte de ferramentas de extrusão. VCM ~H10 1.2365 Forjamento de alta velocidade, como em prensas tipo Hatebur. Forjamento de válvulas automotivas. Forjamento de porcas, parafusos e rebites. VCMAIM H10(MOD.) 1.2885 Refundido Aplicações tipicamente em ferramentas muito aquecidas e de refrigeração intensa: Forjamento de alta velocidade, como em prensas tipo Hatebur. Forjamento de válvulas automotivas. VPCW H12 1.2606 Usualmente aplicado em: Matrizes de forjamento em prensa. Punções de extrusão de ligas não ferrosas. Facas para corte a quente. VW9 ~ H20 ~H21 1.2581 Ferramentas para uso contínuo em forjamento de válvulas, parafusos e porcas. Roletes para laminação a quente. VCO 1.2721 Matrizes de gravuras rasas para forjamento a quente em martelo. Facas para corte a frio de chapas grossas e tarugos. Matrizes para forjamento a frio. Suportes de ferramentas de extrusão a quente
  • 100.
    - Fatec -So - Tecnologia de estampagem - - 101 - Aços ferramenta - Trabalho a frio VF800AT - Pentes e rolos laminadores de rosca. Matrizes e punções para corte e repuxo. Ferramentas de cunhagem. Facas para corte a frio de chapas finas. VD2 D2 1.2379 Matrizes para estampar e cunhar. Pentes laminadores de roscas. Punções e calibres. Facas para corte a frio de chapas VC131 D6 1.2436 Facas para corte de chapas e para corte em condições abrasivas, como papel e madeira. Moldes e formas para prensagem de cerâmicas. Ferramentas de trabalho a frio, em geral. VND O1 1.2510 Facas para corte de papel e madeira. Guias, roletes, calibres e padrões. Rolos e ferramentas de conformação de perfis. Pequenas punções e matrizes para prensagem e cunhagem. VS7 S7 Corte de tarugos, chapas grossas e sucata. Talhadeiras e ferramentas pneumáticas. Placas de choque e outras ferramentas de trabalho a frio, submetidas a choques. VW3 S1 1.2542 Corte de tarugos, chapas grossas e sucata. Talhadeiras e ferramentas pneumáticas. Placas de choque e outras ferramentas de trabalho a frio, submetidas a choques. VETD W2 1.2833 Capaz de ser endurecido superficialmente, quando temperado em água, além de preservar o núcleo tenaz. Aços rápidos VWM2 M2 1.3343 Indicado para brocas helicoidais, fresas, machos, cossinetes, brochas e ferramentas de usinagem. Usado também para estampos de corte, punções, matrizes de estampagem profunda e ferramentas de deformação a frio.
  • 101.
    - Fatec -So - Tecnologia de estampagem - - 102 - VWM7 M7 1.3348 Recomendado especialmente para ferramentas de gume fino, como machos, cossinetes, fresas e brochas helicoidais. VWM8 Aco Rápido com 3% V Aço Rápido com 3% V . Aço com maior resistência ao desgaste, com carbonetos mais finos e boa retificabilidade. Usado especialmente na fabricação de machos. VWM3C M3:2 Usado principalmente na fabricação de machos. VHSSM50 M50 ~1.3551 De aplicação típica em peças ou dispositivos mecânicos de alta solicitação, ou ferramentas de corte de menor solicitação. VKM42 M42 1.3247 Adequado para aplicações mais extremas. Porém, não deve ser utilizado em aplicações sujeitas a choques ou vibrações excessivas. VK5E M35 1.3243 Usado na confecção de fresas e ferramentas de perfil, brocas especiais para usinagem de material de alta resistência. VK10E 1.3207 Para ferramentas de desbaste e acabamento, de alta velocidade, de materiais de usinagem difícil, como aços austeníticos e ligas resistentes ao calor.
  • 102.
    - Fatec -So - Tecnologia de estampagem - - 103 - Apêndice I 6 - Simbologia de Estampagem e = Espessura da chapa (mm) u = Distância entre os pontos de contato da peça com a matriz e o punção(mm) l = Comprimento da tira (mm) s = Espaçamento entre peça e borda (mm) n = Número de peças por metro. a = Avanço ou passo(mm) f = Folga entre punção e matriz (mm) la = Abertura da matriz(mm) lb = Comprimento da dobra.(mm) d1 = Diâmetro da peça repuxada (repuxo cilíndrico) (mm) h1 = Altura do repuxo (mm) m = Coeficiente de repuxo para 1° operação m1= Coeficiente de repuxo para demais operações B = Largura da fita (mm) Ac = Área de corte (secção resistiva de corte) (mm²) Acp = Área da cabeça do punção (mm²) Fc = Forca de corte em tesoura guilhotina (kgf) L = Comprimento de corte ( mm) Ap = Superfície total da peça ( mm²) At = Superfície total da tira ( mm²) P = Força de dobramento (kgf) D = Diâmetro do blanque (mm) Da = Diâmetro adotado considerando usinagem posterior (mm) Pe = Pressão específica dimensionada para a placa de choque (kgf/mm²) R = Raio do blanque (mm) Ri = Raio interno do repuxo (método analítico) (mm) Li = Altura do reuxo (método analítico) (mm) τcis = Tensão de cisalhamento do material (kgf/mm²) λ = Ângulo de inclinação da faca de corte (°) σƒ = Tensão de flexão.(kgf/mm²) σr = Tensão de ruptura a tração(kgf/mm²) J min = Menor momento de inércia E = Módulo de elasticidade do material(Pa) ε = Coeficiente para dobras com planificação de fundo µ = Coeficiente de inclinação ω = Módulo de resistência. Apêndice II
  • 103.
    - Fatec -So - Tecnologia de estampagem - - 104 - 7- Roteiro do Projeto de Estampo Progressivo de Corte P a r t e 1. M e m o r i a l d e C á l c u l o 1. Estudo da Fita 1.1. Definir a posição ideal da peça na fita, com no mínimo: 2 estudos com inversão de corte e 2 sem inversão 1.2. Calcular o número de peças por chapa padronizada 1.3. Calcular a porcentagem de utilização da chapa (considerar o limitador de avanço) 1.3.1. Considerar peça real (com furos) 1.3.2. Considerar a peça bruta (desconsiderar furos) 2. Estudo do Limitador de Avanço 2.1. O projeto deverá considerar avanço manual 2.2. O uso de faca de avanço reduz o rendimento no uso da chapa 2.3. Caso se utilize faca de avanço o rendimento no uso da chapa deverá ser revisto 3. Dimensionamento da Matriz 3.1. Calcular a folga entre punção e matriz 3.2. Efetuar o estudo da parede entre furos 3.3. Calcular a espessura do talão 3.4. Determinar a espessura, comprimento e largura da matriz 3.5. Determinar a vida útil de cada matriz 4. Verificação dos Punções 4.1. Verificar flambagem e resistência à compressão 4.2. Verificar a necessidade de uso da placa de choque 5. Espiga 5.1. Calcular o centro de gravidade do perímetro de corte 5.2. Sugerir tipo da espiga 5.3. Indicar a prensa adequada (fator segurança entre 10 e 20%) 6. Outros Elementos Construtivos 6.1. Elementos Construtivos Padronizados Bases, colunas de guia (pino), buchas, molas, parafusos, pino-guia (DIN 6325) arruelas, etc., devem ser normalizados ou padronizados pelos fabricantes: Danly, Miranda, Polimold, Onça, etc. Apresentar a fonte desses elementos. 6.2. Demais Elementos Construtivos Definir: porta-punções, sistema de guias e extratores, prensa-chapa, limitadores de avanço e demais elementos construtivos. P a r t e 2. D e s e n h o s 1. Apresentar uma pasta com desenhos em tamanho máximo A1 2. Fazer o desenho do conjunto (montagem) em 3 vistas se necessário 3. Fazer o detalhamento de todos os itens do ferramental 4. Punções e Matrizes deverão ter todas as especificações para fabricação. Considerar que esses elementos operam em conjunto 5. Todos os elementos deverão apresentar: tolerâncias e acabamentos Apêndice III
  • 104.
    - Fatec -So - Tecnologia de estampagem - - 105 - 8 - Componentes Fundamentais de um Estampo 1. Pino de Fixação Sua função é fixar componentes do estampo que podem ter movimentos horizontais.
  • 105.
    - Fatec -So - Tecnologia de estampagem - - 106 - Material: Aço prata. 2. Parafuso hexagonal interna (Tipo “Allen”) - DIN 912 3. Punção ou Macho – Obs.: Ø ≥ e da chapa Sua função é dar o formato final do produto. É um elemento de muita precisão. Material: Aço RCC, Aço VC-131 – Temperado 60-62 HRC Aço VT-131 – Temperado e Retificado p/ trabalho a quente 62-64 HRC. 4. Pino de Fixação Sua função é fixar componentes do estampo que podem ter movimentos horizontais. Material: Aço prata. 5. Parafuso hexagonal interna (Tipo “Allen”) – DIN 912 6. Régua de Guia Sua função é guiar a tira durante o processo de estampagem. Material: Aço SAE 1045 – não havendo obrigatoriedade de tratamento térmico com HRC 45-48. 7. Chapa de Apoio Sua função é apoiar a tira antes de entrar no estampo. Material: SAE 1020. 8. Espiga – Obs.: A rosca da Espiga não é cementada Sua função é fixar a base superior do estampo no cabeçote da prensa. Material: Aço SAE 1020. 9. Base Superior – Obs.: Espessura ≥ 20 mm Sua função é apoiar o conjunto superior do estampo no cabeçote da prensa. Material: Aço SAE 1020 ou Ferro Fundido. 10. Placa de Choque – Obs.: Espessura entre 5 e 8 mm Sua função é evitar a penetração dos punções na base superior. Material: Aço SAE 1045 – não havendo obrigatoriedade de tratamento térmico com HRC 45-48. Aço VND - não havendo obrigatoriedade de tratamento térmico com HRC 52-56. 11. Bucha de Guia Sua função é de guiar as colunas do estampo durante o processo de estampagem. Favorece o deslizamento do cabeçote sobre as colunas. Material: Aço VND – Temperado 52-54 HRC, Bronze. (Parafusos de Fixação: Aço Liga). 12. Porta Punção Sua função é posicionar e fixar firmemente os punções. Material: Aço SAE 1020. 13. Mola de Compressão
  • 106.
    - Fatec -So - Tecnologia de estampagem - - 107 - Sua função é de possibilitar o recuo do piloto quando ocorrer posicionamento incorreto da tira. Material: Aço SAE 9260, VS-60 – Temperado 46-48 HRC. 14. Placa Guia Sua função é guiar os punções e extrair a tira dos punções na subida do cabeçote da prensa. Material: Aço SAE 1020. 15. Colunas de Guia - Obs.: Encaixe ≥ 1,5 Ø Sua função é guiar o conjunto superior e inferior do estampo para que não ocorra nenhum deslocamento entre si. Material: Aço SAE 1010/1020 Cementado – Temperado 60-62 HRC. 16. Punção ou Macho – Obs.: Ø ≥ e da chapa Sua função é dar o formato final do produto. É um elemento de muita precisão. Material: Aço RCC, Aço VC-131 – Temperado 60-62 HRC Aço VT-131 – Temperado e Retificado p/ trabalho a quente 62-64 HRC. 17. Pino Piloto Sua função é a de garantir o perfeito avanço da tira corrigindo possíveis falhas no sistema de avanço. Material: Aço VND – Temperado 58-60 HRC Aço Prata – SAE 1040/1050 – Temperado e Retificado. 18. Base Inferior Sua função é apoiar e fixar o conjunto inferior do estampo na mesa da prensa. Material: Aço SAE 1020 ou Ferro Fundido. 19. Matriz ou Fêmea Sua função é a de juntamente com o respectivo punção, formar o produto. Material: Aço RCC, Aço VC-131 – Temperado 60-62 HRC Aço VT-131 – Temperado e Retificado p/ trabalho a quente 62-64 HRC. 20. Parafuso Cabeça Escareada - DIN 93 21. Faca de Avanço Sua função é determinar o avanço (passo) da tira após a cada descida do cabeçote da prensa. Material: Aço RCC, Aço VC-131 – Temperado 60-62 HRC
  • 107.
    - Fatec -So - Tecnologia de estampagem - - 108 - Apêndice IV 9 – Tabela de Tolerâncias Punção – Matriz Peça 1
  • 108.
    - Fatec -So - Tecnologia de estampagem - - 109 - Peça 2
  • 109.
    - Fatec -So - Tecnologia de estampagem - - 110 - Apêndice VI 10 – Sequência de Corte de Peças Inclinadas
  • 110.
    - Fatec -So - Tecnologia de estampagem - - 111 - 12 - Bibliografia • Estampo de Corte – BRITO, OSMAR DE • Projetista de Máquinas – PRO-TEC – PROVENZA, FRANCESCO • Estampos I – PRO-TEC - PROVENZA, FRANCESCO • Estampos II – PRO-TEC – PROVENZA, FRANCESCO • Manual do ferramenteiro – KONINCK, J. DE. GUTTER, D