N-57 REV. E AGO / 2005
PROPRIEDADE DA PETROBRAS 50 páginas, Índice de Revisão e GT
PROJETO MECÂNICO DE
TUBULAÇÕES INDUSTRIAIS
Procedimento
Esta Norma substitui e cancela a sua revisão anterior.
Cabe à CONTEC - Subcomissão Autora, a orientação quanto à interpretação do
texto desta Norma. O Órgão da PETROBRAS usuário desta Norma é o
responsável pela adoção e aplicação dos seus itens.
CONTEC
Comissão de Normalização
Técnica
Requisito Técnico: Prescrição estabelecida como a mais adequada e que
deve ser utilizada estritamente em conformidade com esta Norma. Uma
eventual resolução de não segui-la ("não-conformidade" com esta Norma) deve
ter fundamentos técnico-gerenciais e deve ser aprovada e registrada pelo
Órgão da PETROBRAS usuário desta Norma. É caracterizada pelos verbos:
“dever”, “ser”, “exigir”, “determinar” e outros verbos de caráter impositivo.
Prática Recomendada: Prescrição que pode ser utilizada nas condições
previstas por esta Norma, mas que admite (e adverte sobre) a possibilidade de
alternativa (não escrita nesta Norma) mais adequada à aplicação específica. A
alternativa adotada deve ser aprovada e registrada pelo Órgão da
PETROBRAS usuário desta Norma. É caracterizada pelos verbos:
“recomendar”, “poder”, “sugerir” e “aconselhar” (verbos de caráter
não-impositivo). É indicada pela expressão: [Prática Recomendada].
SC - 17
Cópias dos registros das “não-conformidades” com esta Norma, que possam
contribuir para o seu aprimoramento, devem ser enviadas para a
CONTEC - Subcomissão Autora.
As propostas para revisão desta Norma devem ser enviadas à CONTEC -
Subcomissão Autora, indicando a sua identificação alfanumérica e revisão, o
item a ser revisado, a proposta de redação e a justificativa técnico-econômica.
As propostas são apreciadas durante os trabalhos para alteração desta Norma.
Tubulação
“A presente Norma é titularidade exclusiva da PETRÓLEO BRASILEIRO
S.A. – PETROBRAS, de uso interno na Companhia, e qualquer reprodução
para utilização ou divulgação externa, sem a prévia e expressa autorização
da titular, importa em ato ilícito nos termos da legislação pertinente,
através da qual serão imputadas as responsabilidades cabíveis. A
circulação externa será regulada mediante cláusula própria de Sigilo e
Confidencialidade, nos termos do direito intelectual e propriedade
industrial.”
Apresentação
As Normas Técnicas PETROBRAS são elaboradas por Grupos de Trabalho
- GTs (formados por especialistas da Companhia e das suas Subsidiárias), são comentadas pelas
Unidades da Companhia e das suas Subsidiárias, são aprovadas pelas Subcomissões Autoras - SCs
(formadas por técnicos de uma mesma especialidade, representando as Unidades da Companhia e
as suas Subsidiárias) e homologadas pelo Núcleo Executivo (formado pelos representantes das
Unidades da Companhia e das suas Subsidiárias). Uma Norma Técnica PETROBRAS está sujeita a
revisão em qualquer tempo pela sua Subcomissão Autora e deve ser reanalisada a cada 5 anos para
ser revalidada, revisada ou cancelada. As Normas Técnicas PETROBRAS são elaboradas em
conformidade com a norma PETROBRAS N - 1. Para informações completas sobre as Normas
Técnicas PETROBRAS, ver Catálogo de Normas Técnicas PETROBRAS.
N-57 REV. E AGO / 2005
2
SUMÁRIO
1 OBJETIVO........................................................................................................................................................... 4
2 DOCUMENTOS COMPLEMENTARES............................................................................................................... 4
3 DEFINIÇÕES....................................................................................................................................................... 5
3.1 PROJETO MECÂNICO ......................................................................................................................... 6
3.2 PLANTAS DE ARRANJO...................................................................................................................... 6
3.3 LOCAL SEGURO .................................................................................................................................. 6
3.4 PRODUTOS QUENTES........................................................................................................................ 6
3.5 PRODUTOS FRIOS .............................................................................................................................. 6
3.6 CLASSE DE TUBULAÇÃO ................................................................................................................... 6
3.7 CONEXÃO DE PEQUENO DIÂMETRO (CPD)..................................................................................... 6
3.8 REPARO ............................................................................................................................................... 6
3.9 SISTEMA DE TUBULAÇÃO.................................................................................................................. 7
3.10 TAXA DE CORROSÃO ....................................................................................................................... 7
3.11 TUBULAÇÃO ...................................................................................................................................... 7
3.12 TUBULAÇÕES DE PROCESSO (LINHA “ON SITE”) ......................................................................... 7
3.13 TUBULAÇÕES DE TRANSFERÊNCIA (LINHAS “OFF-SITE”) ........................................................... 7
3.14 TUBULAÇÕES DE UTILIDADES ........................................................................................................ 7
3.15 TUBULAÇÕES DE PEQUENO DIÂMETRO (TPD)............................................................................. 7
3.16 SERVIÇOS CRÍTICOS OU PERIGOSOS........................................................................................... 7
3.17 CCT..................................................................................................................................................... 8
4 CONDIÇÕES GERAIS ........................................................................................................................................ 8
4.1 RESPONSABILIDADES DA PROJETISTA........................................................................................... 8
4.2 APRESENTAÇÃO DO PROJETO......................................................................................................... 8
4.3 MATERIAIS ........................................................................................................................................... 8
4.4 CRITÉRIOS DE CÁLCULO................................................................................................................. 10
4.5 IDENTIFICAÇÃO DE TUBULAÇÕES.................................................................................................. 10
4.6 COORDENADAS E ELEVAÇÕES ...................................................................................................... 10
4.7 ISOLAMENTO TÉRMICO ................................................................................................................... 10
4.8 AQUECIMENTO EXTERNO ............................................................................................................... 11
4.9 FABRICAÇÃO E MONTAGEM............................................................................................................ 11
5 DISPOSIÇÃO GERAL DAS TUBULAÇÕES...................................................................................................... 11
6 ARRANJO DE TUBULAÇÕES CONECTADAS A EQUIPAMENTOS ............................................................... 14
6.1 CONDIÇÕES GERAIS ........................................................................................................................ 14
6.2 TUBULAÇÕES LIGADAS A BOMBAS................................................................................................ 15
6.3 TUBULAÇÕES LIGADAS A TURBINAS ............................................................................................. 16
6.4 TUBULAÇÕES LIGADAS A VASOS................................................................................................... 17
6.5 TUBULAÇÕES LIGADAS A PERMUTADORES DE CALOR.............................................................. 17
6.6 TUBULAÇÕES LIGADAS A COMPRESSORES................................................................................. 18
7 REQUISITOS PARA TPD EM SERVIÇOS CRÍTICOS OU PERIGOSOS......................................................... 19
7.1 REQUISITOS PARA TPD DE PROCESSO ........................................................................................ 19
7.2 REQUISITOS PARA TPD DOS SISTEMAS AUXILIARES DE BOMBAS DE PRODUTO................... 20
7.3 REQUISITOS PARA TPDs DE SISTEMAS DE INSTRUMENTAÇÃO E CONTROLE........................ 25
N-57 REV. E AGO / 2005
3
8 VÁLVULAS ........................................................................................................................................................ 26
8.1 CONSIDERAÇÕES GERAIS .............................................................................................................. 26
8.2 VÁLVULAS DE SEGURANÇA E DE ALÍVIO ...................................................................................... 27
8.3 VÁLVULAS DE CONTROLE ............................................................................................................... 28
9 JUNTAS DE EXPANSÃO .................................................................................................................................. 29
10 SISTEMAS DE PURGA PARA TUBULAÇÕES E EQUIPAMENTOS.............................................................. 29
11 SUPORTES, APOIOS E RESTRIÇÕES DE TUBULAÇÃO............................................................................. 30
12 DIVERSOS ...................................................................................................................................................... 31
ANEXO A - FIGURAS............................................................................................................................................ 33
TABELAS
TABELA 1 - TEMPERATURA LIMITE DO MATERIAL............................................................................................ 9
TABELA 2 - DIMENSIONAMENTO DAS VÁLVULAS ........................................................................................... 16
TABELA 3 - MATERIAIS PARA TUBO DE CONDUÇÃO...................................................................................... 22
TABELA 4 - LIMITE DE ESPESSURA PARA TUBO DE CONDUÇÃO................................................................. 22
TABELA 5 - LIMITE DE ESPESSURA PARA TUBO DE CONDUÇÃO - LINHAS DE VAPOR ............................. 23
TABELA 6 - LIMITE DE ESPESSURA PARA TUBO DE CONDUÇÃO - ÁGUA DE RESFRIAMENTO ................ 23
TABELA 7 - LIMITE DE ESPESSURA PARA TUBO DE CONDUÇÃO - ÓLEO DE LUBRIFICAÇÃO................... 24
FIGURAS
FIGURA A-1 - PONTE DE TUBULAÇÃO .............................................................................................................. 33
FIGURA A-2 - TUBULAÇÕES EM TUBOVIAS...................................................................................................... 34
FIGURA A-3 - ARRANJO ESQUEMÁTICO DE UMA UNIDADE........................................................................... 35
FIGURA A-3 - ARRANJO ESQUEMÁTICO DE UMA UNIDADE........................................................................... 36
FIGURA A-3 - ARRANJO ESQUEMÁTICO DE UMA UNIDADE........................................................................... 37
FIGURA A-3 - ARRANJO ESQUEMÁTICO DE UMA UNIDADE........................................................................... 38
FIGURA A-4 - POSICIONAMENTO DE FUROS DE FLANGES ........................................................................... 39
FIGURA A-5 - ARRANJOS TÍPICOS DE LINHAS DE SUCÇÃO DE BOMBAS .................................................... 40
FIGURA A-5 - ARRANJOS TÍPICOS DE LINHAS DE SUCÇÃO DE BOMBAS .................................................... 41
FIGURA A-6 - ARRANJO TÍPICO DE TUBULAÇÃO EM BOMBAS...................................................................... 42
FIGURA A-7 - AQUECIMENTO DE BOMBA RESERVA....................................................................................... 43
FIGURA A-8 - ARRANJO TÍPICO DE TUBULAÇÃO EM TURBINAS A VAPOR .................................................. 44
FIGURA A-9 - ESPAÇAMENTO ENTRE TUBOS E VASOS................................................................................. 45
FIGURA A-10 - ARRANJOS TÍPICOS DE TUBULAÇÕES EM COMPRESSORES.............................................. 46
FIGURA A-11 - AFASTAMENTO MÍNIMO PARA LINHAS DE SUCÇÃO DE COMPRESSORES DE AR............ 47
FIGURA A-12 - ARRANJOS TÍPICOS DE VÁLVULAS DE CONTROLE .............................................................. 48
FIGURA A-13 - ISOMÉTRICO DA INSTALAÇÃO DE PURGADORES EM EQUIPAMENTOS............................. 49
FIGURA A-14 - ELEVAÇÃO E PLANTA DE INSTALAÇÃO DE PURGADORES EM TANQUES ......................... 50
_____________
/OBJETIVO
N-57 REV. E AGO / 2005
4
1 OBJETIVO
1.1 Esta Norma fixa as condições exigíveis para a execução do projeto mecânico de
tubulações industriais em unidades industriais, compreendendo instalações de exploração e
produção em instalações terrestres, áreas de utilidades e de processo, parques de
armazenamento, bases de armazenamento e terminais (incluindo estações de
bombeamento, compressão e medição, estações de tratamento de efluentes) em áreas fora
de refinarias, utilizando como referência as normas ASME B31.3, B31.4 e B31.8, além da
norma ISO 15649, onde aplicável e em conformidade com a Tabela 1 da norma
PETROBRAS N-1673.
1.2 Esta Norma não se aplica a tubulações que pertençam a sistemas de instrumentação e
controle, sistemas de despejos sanitários, sistemas de drenagem industrial, sistemas de
caldeiras de vapor. Também não se aplica a instalações marítimas, oleodutos e gasodutos,
tubulações pertencentes a equipamentos fornecidos pelo sistema de pacote (compactos),
exceto se definido de forma diferente pela PETROBRAS. Para instalações em plataformas
marítimas de produção, além das recomendações da norma ASME B31, devem ser
seguidas às recomendações da norma API RP 14E.
1.3 Esta Norma se aplica a projetos para a PETROBRAS, iniciados a partir da data de sua
edição.
1.4 Esta Norma contém Requisitos Técnicos e Práticas Recomendadas.
2 DOCUMENTOS COMPLEMENTARES
Os documentos relacionados a seguir contêm prescrições válidas para a presente Norma.
PETROBRAS N-42 - Projeto de Sistema de Aquecimento Externo de
Tubulação, Equipamento e Instrumentação, com
Vapor;
PETROBRAS N-46 - Vãos Máximos entre Suportes de Tubulação;
PETROBRAS N-58 - Símbolos Gráficos para Fluxogramas de Processo e
de Engenharia;
PETROBRAS N-59 - Símbolos Gráficos para Desenhos de Tubulação;
PETROBRAS N-75 - Abreviaturas para os Projetos Industriais;
PETROBRAS N-76 - Materiais de Tubulação para Instalações de Refino e
Transporte;
PETROBRAS N-105 - Espaçamento entre Tubos;
PETROBRAS N-108 - Suspiros e Drenos para Tubulações e Equipamentos;
PETROBRAS N-115 - Montagem de Tubulações Metálicas;
PETROBRAS N-116 - Sistemas de Purga de Vapor em Tubulações;
PETROBRAS N-118 - Filtro Temporário e Filtro Gaveta para Tubulação;
PETROBRAS N-120 - Peças de Inserção entre Flanges;
PETROBRAS N-250 - Montagem de Isolamento Térmico a Alta Temperatura;
PETROBRAS N-550 - Projeto de Isolamento Térmico a Alta Temperatura;
PETROBRAS N-553 - Centrifugal Pumps for General Refinery Service;
PETROBRAS N-858 - Construção, Montagem e Condicionamento de
Instrumentação;
PETROBRAS N-894 - Projeto de Isolamento Térmico a Baixa Temperatura;
PETROBRAS N-896 - Montagem de Isolamento Térmico a Baixa
Temperatura;
N-57 REV. E AGO / 2005
5
PETROBRAS N-1522 - Identificação de Tubulações Industriais;
PETROBRAS N-1645 - Critérios de Segurança para Projeto de Instalações
Fixas de Armazenamento de Gás Liqüefeito de
Petróleo;
PETROBRAS N-1647 - Material para Tubulação - Folha de Padronização;
PETROBRAS N-1673 - Critérios de Cálculo Mecânico de Tubulação;
PETROBRAS N-1674 - Projeto de Arranjo de Refinarias de Petróleo;
PETROBRAS N-1692 - Apresentação de Projetos de Detalhamento de
Tubulação;
PETROBRAS N-1693 - Critério para Padronização de Material de Tubulação;
PETROBRAS N-1758 - Suporte, Apoio e Restrição para Tubulação;
PETROBRAS N-1882 - Critérios para Elaboração de Projetos de
Instrumentação;
PETROBRAS N-1931 - Material de Tubulação para Instrumentação;
PETROBRAS N-2022 - Detalhes de Instalação de Instrumentos de Pressão;
PETROBRAS N-2543 - Shaft Sealing Systems for Centrifugal and Rotary
Pumps;
ISO 15649 - Petroleum and Natural Gas Industries - Piping;
API RP 14E - Recommended Practice for Design and Installation of
Offshore Production Platform Piping Systems;
API RP 520 - Sizing, Selection and Installation of Pressure-Relieving
Devices in Refineries;
API RP 551 - Process Measurement Instrumentation;
API RP 553 - Refinery Control Valves;
API STD 610 - Centrifugal Pumps for Petroleum, Petrochemical and
Natural Gas Industries;
API STD 611 - General-Purpose Steam Turbines for Refinery
Services;
API STD 612 - Special-Purpose Steam Turbines for Petroleum,
Chemical, and Gas Industry Services;
API STD 614 - Lubrication, Shaft-Sealing, and Control-Oil Systems
and Auxiliaries for Petroleum, Chemical and Gas
Industry Services;
API STD 617 - Axial and Centrifugal Compressors and
Expander-Compressors for Petroleum, Chemical, and
Gas e Industry Services;
API STD 682 - Pumps - Shaft Sealing Systems for Centrifugal and
Rotary Pumps;
ASME B1.20.1 - Pipe Threads, General Purpose (Inch);
ASME B16.11 - Forged Fittings, Socket-Welding and Threaded;
ASME B31.3 - Process Piping;
ASME B31.4 - Pipeline Transportation Systems for Liquid
Hydrocarbons and Other Liquids;
ASME B31.8 - Gas Transmission and Distribution Piping Systems;
ASME B36.10 - Welded and Seamless Wrought Steel Pipe;
ASME B36.19 - Stainless Steel Pipe;
NEMA SM 23 - Steam Turbines for Mechanical Drive Service.
3 DEFINIÇÕES
Para propósito desta norma são adotadas as definições indicadas nos itens 3.1 a 3.17.
N-57 REV. E AGO / 2005
6
3.1 Projeto Mecânico
Conjunto de atividades de engenharia e o seu produto destinados a apresentar informações
necessárias e suficientes para adquirir, construir, operar e manter os sistemas de tubulações
de instalações petrolíferas. O conjunto de informações fornecidas pelo projeto é constituído
dos documentos listados na norma PETROBRAS N-1692.
Nota: Projeto mecânico e projeto de detalhamento de tubulações devem ser
considerados sinônimos para fins desta Norma.
3.2 Plantas de Arranjo
Para fins de aplicação desta Norma são também aplicáveis todos os termos relativos as
plantas de arranjo definidos na norma PETROBRAS N-1674.
3.3 Local Seguro
Região na qual é admissível a descarga de gases inflamáveis ou tóxicos. Para suspiros,
conforme norma PETROBRAS N-1674. Para drenos, conforme norma
PETROBRAS N-1645.
3.4 Produtos Quentes
Fluidos com temperatura acima de 60 °C.
3.5 Produtos Frios
Fluidos com temperatura abaixo ou igual a 60 °C.
3.6 Classe de Tubulação
Grau de importância dos sistemas de tubulações, em classes, de forma a enquadrá-los em
função dos efeitos à segurança das pessoas, às instalações e ao meio ambiente,
decorrentes de um eventual vazamento provocado por falha do sistema.
3.7 Conexão de Pequeno Diâmetro (CPD)
São consideradas conexões de pequeno diâmetro, todas as conexões que apresentem
diâmetro nominal igual ou inferior a 1-1/2” (NPS ≤ 1-1/2). Ver item 3.15.
3.8 Reparo
Qualquer intervenção que vise estabelecer a operacionalidade após falha ou corrigir não
conformidades com relação ao projeto original.
N-57 REV. E AGO / 2005
7
3.9 Sistema de Tubulação
Conjunto de tubulações usadas para conduzir fluidos, interligadas entre si e/ou a
equipamentos estáticos ou dinâmicos e sujeitas às mesmas condições de projeto
(temperatura e pressão).
3.10 Taxa de Corrosão
Número que indica a perda de espessura da tubulação ocorrida em determinado período de
tempo em um ponto ou conjunto de pontos de controle e expressa em mm/ano.
3.11 Tubulação
Conjunto de tubos e acessórios (válvulas, flanges, curvas, conexões, etc.) destinados ao
transporte de fluidos de processo ou de utilidades.
3.12 Tubulações de Processo (Linha “On Site”)
Tubulação que interliga sistemas de tubulação ou equipamentos no espaço físico definidos
pelas unidades de processo, normalmente delimitadas pelo limite da bateria.
3.13 Tubulações de Transferência (Linhas “Off-Site”)
Tubulações que interligam sistemas de tubulação ou equipamentos no espaço físico fora
das unidades de processo.
3.14 Tubulações de Utilidades
Tubulações que transportam fluidos auxiliares, necessários ao processo e armazenamento.
3.15 Tubulações de Pequeno Diâmetro (TPD)
Tubulações de instalações industriais de diâmetro nominal igual ou inferior a 1 1/2”;
compreendendo as linhas de processo, linhas auxiliares de máquinas e linhas de
instrumentação.
3.16 Serviços Críticos ou Perigosos
Para fins desta Norma, entende-se como serviços críticos ou perigosos aqueles em que há
perigo de explosão, auto-ignição, fogo e/ou toxidade ambiental, nos casos de vazamentos.
As alíneas a seguir, são exemplos de sistemas de tubulação nestas condições, mas não
limitados a estes sistemas de tubo:
a) linhas conduzindo fluidos com concentração de H2S superior a 3 % em peso;
b) linhas com fluidos em pressão parcial de H2 superior a 441 kPa (4,5 kgf/cm2
);
c) linhas de solução DEA, MEA ou soda cáustica, contaminadas ou não;
d) linhas com fluidos líquidos inflamáveis em temperatura de operação igual ou
superior a temperatura de “flash” ou de auto-ignição;
e) linhas de gás inflamável: gás residual de processo, GLP, gás combustível, gás
natural e gás para tocha;
N-57 REV. E AGO / 2005
8
f) linhas com produto tóxico “categoria M” da norma ASME B31.3;
g) linhas de hidrocarbonetos e produtos químicos conectadas a máquinas
alternativas;
h) linhas de hidrocarbonetos e produtos químicos com elevado nível de vibração;
i) linhas de hidrocarbonetos e produtos químicos, em temperatura de trabalho
superior a 260 ºC ou pressão de trabalho superior a 2 000 kPa (20 kgf/cm2
);
j) linhas de hidrocarbonetos e produtos químicos com sobreespessura de
corrosão ou erosão acima de 3,2 mm;
k) linhas de hidrocarbonetos e produtos químicos sujeitas a corrosão sob tensão;
l) linhas de hidrocarbonetos e produtos químicos que atingem temperaturas
abaixo de 0 ºC, em caso de vazamento, devido à despressurização súbita à
pressão atmosférica.
3.17 CCT
Conexões a compressão para tubo (“tubing”).
4 CONDIÇÕES GERAIS
4.1 Responsabilidades da Projetista
4.1.1 A projetista deve sempre assumir a total responsabilidade sobre o projeto e elaborar
desenhos detalhados, cálculos e todos os demais documentos que constituem o projeto. É
de exclusiva responsabilidade da projetista a estrita observância de todas as prescrições
aplicáveis desta Norma, bem como de todas as disposições legais que possam afetar o
projeto mecânico de tubulações industriais. Devem também ser seguidas pela projetista
todas as exigências das normas específicas para cada uma das unidades industriais citadas
no item 1.1.
4.1.2 Para parques de armazenamento de GLP, devem ser consideradas adicionalmente as
prescrições da norma PETROBRAS N-1645.
4.1.3 A liberação ou aceitação, total ou parcial, do projeto por parte da PETROBRAS em
nada diminui a responsabilidade da projetista pelo projeto.
4.2 Apresentação do Projeto
O projeto deve ser apresentado como determinado pela norma PETROBRAS N-1692.
4.3 Materiais
4.3.1 Devem ser adotadas no projeto, as padronizações de material de tubulação, da norma
PETROBRAS N-76, cujas abrangências devem estar definidas na norma
PETROBRAS N-1693.
N-57 REV. E AGO / 2005
9
4.3.2 Para os serviços não cobertos por nenhuma das padronizações de material de
tubulação, citadas no item 4.3.1, a projetista deve preparar padronizações de material
utilizando o formulário padronizado pela norma PETROBRAS N-1647 devendo ser
preenchidos todos os espaços que forem aplicáveis. Para elaboração destas padronizações
devem-se seguir as recomendações da norma PETROBRAS N-1693.
4.3.3 Os materiais das padronizações preparadas pela projetista devem ser os que constam
nas normas ISO, ABNT, ASTM, ASME e API. Somente devem ser utilizados materiais de
acordo com outras normas com autorização da PETROBRAS.
4.3.4 Para temperaturas de operação superiores a 15 °C devem ser consideradas as
recomendações constantes da TABELA 1. Em serviços corrosivos, os limites de temperatura
devem ser estabelecidos para cada caso.
TABELA 1 - TEMPERATURA LIMITE DO MATERIAL
Temperatura Limite (°C)
Material
Resistência
Mecânica
(Ver Nota 1)
Oxidação
Superficial
(Ver Nota 2)
Aços-Carbono de Qualidade Estrutural (A-120) 100 530
Aços-Carbono Não Acalmados (Materiais
Qualificados) (A-53, API 5L)
400 530
Aços-Carbono Acalmados, com Si (A-106) 430 530
Aços-Liga 1/2 Mo 500 530
Aços-Liga 1 1/4 Cr - 1/2 Mo 530 530
Aços-Liga 2 1/4 Cr - 1 Mo 530 570
Aços-Liga 5 Cr - 1/2 Mo 480 600
Aços Inoxidáveis 405, 410 470 700
Aços Inoxidáveis 304, 316 (ver Nota 3) 600 800
Aços Inoxidáveis 304L, 316L 430 800
Aços Inoxidáveis 310 600 800
Notas: 1) Os limites de resistência mecânica, ocorrem nas temperaturas máximas para
as quais o material ainda apresenta resistência aceitável para a aplicação.
2) Os limites de oxidação superficial ocorrem nas temperaturas acima das quais o
material começa a sofrer uma oxidação superficial muito intensa; esses limites
não devem ser ultrapassados para serviço contínuo em nenhum caso.
3) Para temperaturas de projeto superiores a 550 °C, recomenda-se o uso de
aços inoxidáveis tipo “H”. [Prática Recomendada]
4.3.5 Para temperaturas de operação inferiores a 15 °C consultar a norma
PETROBRAS N-1693.
4.3.6 Para qualquer tubulação de processo, o menor diâmetro nominal é de 3/4”.
Permitem-se tubulações com diâmetro mínimo de 1/2”, para tomadas de flanges de orifícios,
utilidades e para linhas auxiliares de máquinas (bombas). [Prática Recomendada]
N-57 REV. E AGO / 2005
10
4.3.7 Deve ser evitado o uso de tubulações com os seguintes diâmetros nominais: 1/4”,
3/8”, 3 1/2” e 5”. Permitem-se pequenos trechos de tubo ou acessório, para conectar
diretamente em equipamentos. O diâmetro nominal de 2 1/2” deve ser usado somente para
sistemas de água de incêndio.
4.3.8 As espessuras de paredes dos tubos de aço devem ter os valores padronizados pelas
normas ASME B36.10 e ASME B36.19, constantes das normas PETROBRAS N-76 e
N-1693.
4.3.9 Para evitar dificuldades na aquisição de válvulas ou conexões, as tubulações de
grande diâmetro devem ter os seguintes diâmetros normais: 20”, 24”, 30”, 36”, 42”, 48”, 54”
e 60”. [Prática Recomendada]
4.4 Critérios de Cálculo
Os cálculos mecânicos do projeto de tubulações devem obedecer aos critérios da norma
PETROBRAS N-1673.
4.5 Identificação de Tubulações
Todas as tubulações devem receber um código de identificação de acordo com a norma
PETROBRAS N-1522, exceto se definido de forma diferente pela PETROBRAS. A
identificação de cada tubulação deve figurar obrigatoriamente, em destaque, em todos os
desenhos (tais como: fluxogramas, plantas e isométricos), listas, folhas de dados e demais
documentos do projeto nas quais a referida tubulação aparecer ou estiver citada.
4.6 Coordenadas e Elevações
4.6.1 Todas as construções, equipamentos e tubulações, bem como arruamentos, limites
de terreno, limites de área e quaisquer outras informações relevantes de situação devem ser
locados nos desenhos por coordenadas referidas a um sistema de 2 eixos ortogonais
denominados “Norte-Sul de Projeto” e “Leste-Oeste de Projeto”. Nos projetos de ampliação
de unidades existentes deve ser utilizado o mesmo sistema de coordenadas do projeto
inicial. Em instalações flutuantes, tais como: plataformas e navios, as coordenadas podem
ser referidas a proa, popa, bombordo e boreste.
4.6.2 Salvo indicação em contrário, as elevações básicas de pisos, bases de equipamentos
e estruturas devem estar de acordo com a norma PETROBRAS N-1674.
4.7 Isolamento Térmico
4.7.1 O projeto e a instalação do isolamento térmico de tubulação devem obedecer às
normas PETROBRAS N-250, N-550, N-894 e N-896.
4.7.2 As tubulações com isolamento térmico devem ser indicadas conforme as normas
PETROBRAS N-58 e N-59, na Folha de Dados de tubulação e nos documentos de projeto
necessários.
N-57 REV. E AGO / 2005
11
4.8 Aquecimento Externo
O projeto para aquecimento externo de tubulações deve ser conforme a norma
PETROBRAS N-42.
4.9 Fabricação e Montagem
A fabricação e a montagem de tubulações devem estar de acordo com a norma
PETROBRAS N-115.
5 DISPOSIÇÃO GERAL DAS TUBULAÇÕES
5.1 O arranjo das tubulações deve ser o mais econômico, levando-se em conta as
necessidades de processo, montagem, operação, segurança e facilidades de manutenção.
Deve ser prevista a possibilidade de ampliação futura nos arranjos de tubulação,
reservando-se espaço para esse fim.
5.2 Como regra geral, as tubulações devem ser instaladas acima do nível do solo.
5.2.1 Em terminais, parques de armazenamento e bases de provimento, permitem-se o uso
de tubulações enterradas. A projetista deve avaliar o auto benefício desta solução, levando
também em consideração os requisitos de segurança.
5.2.2 Em refinarias, unidades de processamento em geral e em indústrias petroquímicas,
permitem-se tubulações enterradas somente para drenagem e para linhas de incêndio
dentro de unidades de processo.
5.2.3 Tubulações com isolamento térmico ou com aquecimento, em princípio não devem
ser enterradas. Caso seja imprescindível, devem ser tomados cuidados quanto à
preservação do aquecimento, garantindo a integridade do isolamento e permitindo a
dilatação térmica.
5.3 A altura mínima, acima do solo ou de um piso, para qualquer tubulação não
subterrânea, dentro ou fora de áreas de processo, deve ser de, no mínimo, 300 mm,
medidos a partir de geratriz inferior externa dos tubos. Essa altura deve ser sempre
aumentada, quando necessário, para a instalação de acessórios na parte inferior dos tubos,
como, por exemplo, botas para recolhimento de condensado e drenos com válvulas.
5.4 Devem ser evitadas as tubulações dentro de canaletas. Permite-se esse tipo de
construção para linhas de drenagem, de água de resfriamento e de despejos, dentro de
unidades de processo, e para linhas de sucção de máquinas, quando não houver outra
alternativa viável.
N-57 REV. E AGO / 2005
12
5.5 As tubulações devem formar grupos paralelos, com a mesma elevação de geratriz
externa inferior dos tubos (elevação de fundo). Esses grupos paralelos devem, sempre que
possível, ter uma direção ortogonal de projeto (Norte-Sul ou Leste-Oeste), ou a direção
vertical. As tubulações que trabalham em temperatura elevada devem ficar externamente no
grupo de tubos paralelos e na maior elevação da tubovia para facilitar a colocação das
curvas de expansão. Os tubos mais pesados devem ficar na menor elevação da ponte de
tubulação e mais próximos das colunas da ponte de tubulação. Grupos de tubulações
horizontais paralelos devem ter elevações diferentes para direções diferentes. As tubulações
que tenham derivações para diversas unidades ou para equipamentos de um lado ou de
outro de uma tubovia central devem, preferencialmente, ficar no centro da tubovia. Por
razões econômicas, tubos de grandes diâmetros ou com materiais especiais podem ter
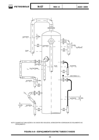
tratamento diferente do anteriormente descrito (ver FIGURA A-3, referências 4 e 6).
5.6 Dentro de áreas de processo, a maior parte possível das tubulações deve ser instalada
sobre tubovias elevadas (pontes de tubulação), como mostra a FIGURA A-1. Quando
previsto tráfego de veículos, essas tubovias devem ter uma altura tal que permita um arranjo
de tubulação com espaços livres mínimos de 4 m de altura por 3 m de largura. Quando for
previsto tráfego somente de pessoas, a altura pode ser reduzida para 3 m e a largura 1,5 m.
Quando estiver previsto o trânsito de equipamentos de movimentação ou elevação de
cargas os espaços sob as tubovias devem ser adequados a esses equipamentos.
Permitem-se trechos de tubulação a pequena altura do piso, desde que não obstruam as
vias de tráfego de veículos e pessoas. Por razões de processo ou econômicas, permitem-se
tubulações instaladas a grandes alturas convenientemente suportadas, ligando diretamente
equipamentos entre si.
5.7 As tubulações de interligação, fora de áreas de processo, devem ser instaladas, sempre
que possível, sobre suportes a pequena altura do piso. Havendo cruzamento com ruas ou
avenidas, as tubulações devem ser instaladas em trincheiras (tubovias) permitindo a
passagem de veículos em pontilhões, por cima das tubulações conforme mostra a
FIGURA A-2. Em casos especiais pode ser analisada a não colocação de trincheira
(travessias de linhas de incêndio ou linhas solitárias). A profundidade da trincheira deve ser
a mínima possível, suficiente para:
a) permitir a construção dos pontilhões;
b) permitir que uma derivação do tubo de maior diâmetro possa passar por baixo
da rua;
c) deixar uma folga suficiente para permitir a entrada de pessoas por baixo dos
pontilhões, para a inspeção e pintura das tubulações.
5.8 As tubulações sobre tubovias elevadas devem ser dispostas de tal forma, que as linhas
de pequeno diâmetro fiquem entre 2 linhas de grandes diâmetro, permitindo que as
primeiras se apoiem nas últimas (suportes “caronas”) e reduzindo assim a necessidade de
suportes intermediários.
5.9 Todas as tubulações elevadas devem ser projetadas de forma que não obstruam o
acesso para pessoas. As tubulações não devem ser apoiadas sobre plataformas ou
passadiços.
5.10 Devem ser sempre reservados espaços nos suportes elevados de tubulação (pontes
de tubulação ou tubovias), para a passagem de dutos de instrumentação e cabos elétricos.
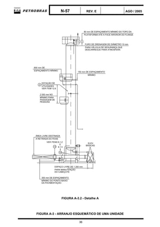
Esses espaços, em princípio, são os seguintes (ver FIGURA A-3, referência 8):
N-57 REV. E AGO / 2005
13
a) 800 mm x 300 mm - espaço total para dutos de instrumentação elétrica;
b) 1 000 mm x 300 mm - interligações aéreas elétricas para iluminação e
alimentação de cargas.
5.10.1 Deve ser previsto, nas tubovias em geral, espaço de 25 % da sua largura para
ampliação futura.
5.10.2 Para cada projeto e para cada caso as dimensões finais das tubovias devem ser
aprovadas pela PETROBRAS.
5.11 O espaçamento entre tubulações paralelas deve ter, no mínimo, os valores dados na
norma PETROBRAS N-105, devendo-se levar em conta os deslocamentos que as
tubulações possam ter em conseqüência das dilatações térmicas.
5.12 No caminhamento das tubulações deve ser prestada especial atenção aos casos em
que haja alguma exigência de processo, tais como: declividade constante, ausência de
pontos altos e mínimo de perda de carga.
5.13 O arranjo de toda tubulação deve ser feito prevendo-se acesso rápido e seguro aos
equipamentos, válvulas e instrumentos, tanto para a manutenção como para operação (ver
FIGURA A-3, referência 13). As tubulações e suportes devem ser locados de forma a
permitirem a fácil desmontagem e retirada de todas as peças que forem desmontáveis.
5.14 Sempre que possível todos os bocais de descarga de grupos de bombas devem estar
no mesmo alinhamento.
5.15 As curvas de expansão devem ser colocadas em elevação superior à tubulação
(espaciais), exceto quando não for permitido por motivo de processo (linhas com declive
constante, fluxo em 2 fases e algumas linhas de sucção de bombas). Devem ser evitadas as
curvas de expansão no plano vertical.
5.16 Todas as tomadas de utilidades, óleo de lavagem e “flushing”, bem como as linhas de
válvulas de segurança devem ser instalada no topo da linha-tronco (ver item 5.21).
5.17 As mudanças de direção devem obedecer aos requisitos apresentados nos
itens 5.17.1 a 5.17.5.
5.17.1 As mudanças de direção das tubulações devem ser feitas com o uso de curvas,
joelhos, tês, cruzetas ou podem ser feitas por curvamento do próprio tubo. O uso de tê
flangeado deve ser minimizado.
5.17.2 O curvamento dos tubos deve ser feito segundo os requisitos da norma
PETROBRAS N-115.
N-57 REV. E AGO / 2005
14
5.17.3 Para o curvamento de tubos utilizando método convencional, o raio de curvatura
médio deve ser, no mínimo, 5 vezes o diâmetro nominal do tubo. Para o curvamento de
tubos pelo método de indução por alta freqüência, podem ser utilizados raios de curvatura
médios de até 1,5 vez o diâmetro nominal, dependendo do procedimento de execução a ser
aprovado pela PETROBRAS. [Prática Recomendada]
5.17.4 As curvas em gomos devem ser projetadas segundo a norma ASME B31.3.
5.17.5 Em todos os casos acima, quando a curva não for a de raio longo, deve ser indicado
nos desenhos qual foi a curva usada.
5.18 O emprego de flanges deve ser minimizado, permitindo-se normalmente apenas para
ligações a válvulas, vasos, tanques, bombas ou outros equipamentos. Podem ser
flangeadas as tubulações que necessitem de desmontagem freqüente para limpeza ou
inspeção e as tubulações com revestimento interno.
5.19 As tubulações com isolamento térmico devem obrigatoriamente ser providas de patins
ou berços (ver item 11.10.3), para a proteção do isolamento térmico, qualquer que seja o
material, o diâmetro ou o serviço da tubulação (ver FIGURA A-3, referência 7).
5.20 Todos os flanges devem ser colocados de forma que a vertical ou as linhas Norte-Sul
de projeto passem pelo meio do intervalo entre 2 furos (ver FIGURA A-4).
5.21 Recomenda-se que, para tubulações de diâmetros iguais ou superiores a 30”,
conduzindo líquido ou sujeitas a esforços dinâmicos ou ainda cuja perda de carga seja
crítica , as derivações sejam feitas a 45° com o sentido de fluxo. [Pratica Recomendada]
6 ARRANJO DE TUBULAÇÕES CONECTADAS A EQUIPAMENTOS
6.1 Condições Gerais
6.1.1 Nas tubulações de entrada de qualquer máquina (tais como bombas, turbinas e
compressores) deve ser previsto um filtro temporário, de acordo com a norma
PETROBRAS N-118, exceto quando houver um filtro permanente na tubulação. A instalação
do filtro temporário deve ser de forma que permita a sua fácil colocação e retirada.
6.1.2 As forças e os momentos causados pela tubulação sobre os bocais de qualquer
máquina (devido à dilatação térmica, peso próprio ou de qualquer outra origem), devem ficar
abaixo dos limites admissíveis fornecidos pelos fabricantes dessas máquinas. Os valores
dados nas normas API STD 610, API STD 611, API STD 612, API STD 617 e NEMA SM 23,
podem ser tomados com uma indicação preliminar, devendo-se observar entretanto que a
utilização dessas normas só é possível para as máquinas projetadas e construídas de
acordo com todas as exigências dessas mesmas normas.
N-57 REV. E AGO / 2005
15
6.1.3 O projeto das tubulações deve ser feito de forma que os vasos e equipamentos
possam ser bloqueados para manutenção, com facilidade e sem risco. O bloqueio deve ser
feito com o uso de válvulas de bloqueio e peças “Figuras 8”, localizadas em pontos
estratégicos da tubulação e com fácil acesso do solo, de alguma plataforma ou piso de
operação, definidos em acordo com a PETROBRAS durante o detalhamento. As
“Figuras 8” devem ser representadas nos fluxogramas de engenharia.
6.1.3.1 Em tubulações suportadas ligadas a bocais inferiores de equipamentos, devem ser
previstos suportes reguláveis, de forma a permitir a introdução de raquetes.
6.1.3.2 Quando essas peças de bloqueio não forem previstas, o arranjo de tubulações deve
permitir a remoção de válvulas ou de outros componentes, para a colocação de flanges
cegos, tampões ou bujões.
6.2 Tubulações Ligadas a Bombas
6.2.1 O arranjo das tubulações deve ser tal que permita o fácil e livre acesso para a
operação e manutenção da bomba e retirada da bomba e de seu acionador, com o mínimo
possível de desmontagem na tubulação. Deve ser previsto um espaço mínimo de 1 500 mm
no lado do acionador da bomba (ver FIGURA A-3, referência 19). Nas FIGURAS A-3 e A-5
estão apresentados alguns arranjos típicos.
6.2.2 As válvulas para a operação das bombas devem ser de fácil acesso, devendo-se
evitar o emprego de acionamento por corrente ou hastes de extensão.
6.2.3 Devem ser previstos drenos a montante das válvulas de sucção no ponto mais baixo e
a jusante das válvulas de retenção na descarga, de modo que se possam efetuar operações
de drenagem total e limpeza de linhas com as bombas bloqueadas (ver FIGURA A-6 e
norma PETROBRAS N-108).
Nota: Quando for possível drenar a tubulação de sucção através da bomba, pode-se
dispensar o dreno a montante da válvula de sucção. [Prática Recomendada]
6.2.4 O traçado das tubulações de sucção deve ser o mais curto e direto possível, sem
pontos altos ou baixos, levando-se em conta a necessária flexibilidade térmica para as
linhas.
6.2.5 A colocação de válvulas junto às bombas deve obedecer aos seguintes critérios:
a) bombas com sucção afogada, ou bombas em paralelo succionando de uma
mesma linha-tronco: colocação obrigatória de uma válvula de bloqueio junto ao
bocal de sucção de cada bomba; essa válvula não é recomendada para as
bombas com sucção não afogada, e que não estejam em paralelo com outras
bombas;
b) bombas com sucção não afogada: colocação obrigatória de uma válvula de
retenção (válvula de pé), na extremidade livre da linha de sucção,
suficientemente mergulhada no líquido do reservatório de sucção;
c) tubulação de recalque (qualquer caso): colocação obrigatória de uma válvula
de bloqueio junto ao bocal de saída de cada bomba;
N-57 REV. E AGO / 2005
16
d) bombas com recalque para um nível estático mais elevado ou bombas em
paralelo recalcando para uma mesma linha-tronco: colocação obrigatória de
uma válvula de retenção junto ao bocal de saída de cada bomba, além da
válvula de bloqueio na alínea c).
6.2.6 Cuidados especiais devem ser tomados em tubulações ligadas ás bombas
alternativas, com o intuito de prevenir vibrações indesejáveis aos sistemas.
6.2.7 Quando o bocal da bomba for de diâmetro menor do que a tubulação ligada ao bocal,
recomenda-se o uso da TABELA 2 para o dimensionamento das válvulas junto à bomba.
[Prática Recomendada]
TABELA 2 - DIMENSIONAMENTO DAS VÁLVULAS
Bocal Diâmetro Nominal do Bocal
Diâmetro Nominal
da Válvula
Um diâmetro nominal menor que a linha O mesmo da linha
Sucção
2 ou mais diâmetros nominais menores
do que a linha
Um diâmetro nominal
menor que a linha
Descarga Menor que a linha
Um diâmetro nominal maior
que o bocal
6.2.8 Quando a tubulação de sucção for de diâmetro maior do que o bocal de entrada da
bomba, a redução colocada junto à bomba deve ser de acordo com as FIGURAS A-5 e A-6.
6.2.9 Os ramais para 2 ou mais bombas que operam em paralelo, succionando da mesma
linha-tronco, bem como para as bombas centrífugas tipo sucção dupla, devem ser os mais
simétricos possíveis, com a mesma perda de carga, de forma a evitar o fluxo preferencial
por um ramal.
6.2.10 Para sistemas operando a temperaturas superiores a 300 °C, a bomba reserva deve
ser mantida aquecida através de recirculação do fluido, conforme esquema mostrado na
FIGURA A-7.
6.2.11 Para bombas de deslocamento positivo deve ser previsto by-pass com válvula de
alívio na descarga com a capacidade de vazão da bomba.
6.2.12 As tubulações de descarga de bombas dosadoras devem atender aos requisitos
estabelecidos pelo fabricante.
6.3 Tubulações Ligadas a Turbinas
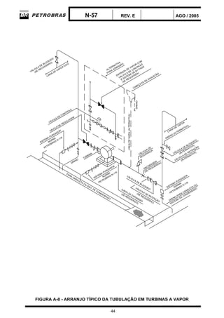
6.3.1 São aplicáveis as mesmas exigências e recomendações dos itens 6.2.1 e 6.2.2, na
FIGURA A-8 está apresentado um esquema típico.
N-57 REV. E AGO / 2005
17
6.3.2 A tubulação de entrada de vapor na turbina deve, de preferência, ser vertical, com
fluxo descendente.
6.3.3 Deve ser instalado um sistema de alívio de pressão, na tubulação de saída da turbina,
e antes de qualquer válvula. Esse sistema de alívio não é necessário quando a turbina
descarrega diretamente para a atmosfera.
6.3.4 Na tubulação de entrada da turbina deve ser previsto um purgador de vapor, instalado
no ponto baixo, imediatamente antes da válvula de regulagem ou controle.
6.3.5 Deve ser previsto um filtro permanente na tubulação de entrada da turbina, sempre
que não houver um filtro integral na própria turbina. Esse filtro deve ser colocado o mais
próximo possível do bocal de entrada.
6.3.6 Quando 2 ou mais turbinas têm uma válvula de controle comum, devem ser previstas
válvulas de bloqueio no bocal de entrada de cada turbina. Devem ser também previstas
válvulas de bloqueio na descarga de cada turbina.
6.3.7 Deve ser previsto sistema de purga na linha de entrada de vapor mesmo que a turbina
tenha purgador automático de vapor.
6.4 Tubulações Ligadas a Vasos
6.4.1 O arranjo das tubulações deve ser feito de modo que não obstrua o acesso para
operação, manutenção e testes. Devem ser deixados inteiramente livres os tampos de
bocas de visita e outras partes desmontáveis dos vasos. As folgas necessárias entre as
tubulações e os vasos, devem ser como mostram as FIGURAS A-3 e A-9.
6.4.2 Para vasos verticais, os bocais conectados a tubulações e instrumentos devem ser
agrupados, preferencialmente, em 1 ou 2 setores convenientemente escolhidos no costado
do vaso.
6.4.3 Todas as válvulas devem ser acessíveis para operação do piso ou plataforma.
6.4.4 Os esforços exercidos pela tubulação sobre os bocais dos vasos (devido a dilatação
térmica, pesos, ou de qualquer outra origem) não devem acarretar tensões superiores às
admissíveis nos bocais. A análise de flexibilidade das tubulações deve considerar os
deslocamentos dos bocais dos vasos devido a dilatação térmica dos vasos.
6.5 Tubulações Ligadas a Permutadores de Calor
6.5.1 São aplicáveis as mesmas exigências do item 6.4.4.
N-57 REV. E AGO / 2005
18
6.5.2 O arranjo das tubulações deve ser feito de modo que seja possível a retirada dos
feixes tubulares, carretéis e tampos de casco com o mínimo de desmontagem de tubos. Não
deve haver nenhuma tubulação na área em frente a tampa do carretel, dentro do espaço
necessário para a remoção do feixe tubular. Deve também ser deixado livre um espaço
suficiente, em todo o perímetro dos flanges do casco e do carretel, para permitir a
desmontagem dos parafusos desses flanges (ver FIGURA A-3, referência 1).
6.5.3 O projeto de tubulação deve prever área para limpeza, com tomadas de água,
tomadas elétricas, acesso para máquinas, iluminação, bem como estrutura saca-feixe (fixa
ou móvel); deve ser estudada a conveniência de se ter talha ou ponte rolante fixa (ver
FIGURA A-3, referência 20).
6.5.4 As tubulações de água de resfriamento ligadas a permutadores devem ser dispostas
de forma que a água não seja drenada pela tubulação de saída, no caso de falha na
alimentação.
6.5.5 Os resfriadores a ar devem ter válvulas de bloqueio nas tubulações de entrada e de
saída.
6.5.6 O arranjo deve prever bloqueio (mesmo em série) e tubulações de contorno sempre
que os permutadores forem passíveis de manutenção individual em serviço.
6.5.7 No caso de permutadores sobrepostos, devem ser previstas “Figuras 8” para permitir
teste hidrostático individual dos equipamentos.
6.6 Tubulações Ligadas a Compressores
6.6.1 O arranjo das tubulações dos compressores deve facilitar a desmontagem da carcaça
e a remoção das partes internas.
6.6.2 O arranjo de tubulação de sucção, com tomada para a atmosfera, deve ser tal que
evite entrada de umidade no compressor. As linhas longas de sucção devem ser evitadas e
nos casos em que sejam necessárias, devem ser montados separadores de líquido junto ao
compressor. Nas FIGURAS A-10 e A-11 estão representadas algumas disposições típicas.
6.6.3 Os pontos baixos nas linhas de sucção devem ser evitados, devendo-se fazer a
tubulação o mais retilíneo possível, para evitar problemas de “surge” e de perda de carga.
Quando necessário, deve-se prever a eliminação do condensado e da sujeira acumulada.
De preferência, a linha de sucção deve ter o fluxo ascendente. As tomadas de ar para
compressores de ar devem estar longe de janelas, chaminés, descarga de gases ou
qualquer outra fonte contaminante do ar, não devendo ficar em lugar que restrinja a sucção.
N-57 REV. E AGO / 2005
19
6.6.4 As tubulações ligadas ao compressor não devem transmitir esforços excessivos
devido a pesos, dilatação térmica, conforme previsto no item 6.1.2. Devem ser previstas
ancoragens, suportes ou juntas de expansão para minimizar os efeitos de pulsações e
vibrações. Os suportes devem ser convenientemente espaçados para evitar vibrações. No
caso de compressor alternativo, a base do equipamento e do acionador e os suportes das
tubulações a ele ligados devem ser construídos independentemente das fundações,
estrutura e cobertura. De preferência, as tubulações não devem ter suportes no bloco de
base do compressor.
6.6.5 As válvulas para operação do compressor devem ser acessíveis do piso ou
plataformas.
6.6.6 O condensado drenado de cada estágio de pressão deve ser recolhido em tubulações
independentes. Quando houver uma tubulação única de condensado, devem ser previstos
meios adequados de evitar o retorno do condensado de alta pressão para os estágios de
menor pressão.
6.6.7 Devem ser previstas válvulas de segurança, com capacidade igual à do compressor,
entre a descarga do compressor e a válvula de bloqueio, e nas tubulações interestágios.
6.6.8 Devem ser colocados vasos amortecedores de pulsação o mais próximo possível da
descarga do compressor e, se requerido, na linha de sucção.
6.6.9 Devem ser previstos filtros na linha de sucção.
6.6.10 Devem ser previstos purgadores nos pontos baixos das linhas de distribuição de ar
comprimido.
7 REQUISITOS PARA TPD EM SERVIÇOS CRÍTICOS OU PERIGOSOS
São apresentados a seguir os requisitos de projeto dos seguintes sistemas de tubulação:
a) linhas de processo, seus by-passes e alívio térmico;
b) linhas auxiliares de válvulas: “flushing”, purga, by-pass e equalização;
c) linhas dos sistemas auxiliares de bombas de produtos;
d) linhas de instrumentação e controle, em equipamentos e tubulações.
Nota: Os drenos e suspiros instalados em tubulações devem obedecer às
especificações da norma PETROBRAS N-108.
7.1 Requisitos para TPD de Processo
7.1.1 São considerados TPD de processo os seguintes sistemas de tubulação: linhas de
processo, derivações, tomadas de alívio térmico e de PSVs, e, ainda, as linhas auxiliares de
válvulas (“flushing”, purga, by-pass e equalização).
N-57 REV. E AGO / 2005
20
7.1.2 Requisitos para Padronizações de Materiais de Tubulação
7.1.2.1 Os materiais de TPD devem atender a norma PETROBRAS N-76.
7.1.2.2 Para serviços críticos ou perigosos usar tubos de condução sem costura,
extremidade lisa, com diâmetro nominal mínimo de 1”, exceto para drenos e suspiros que
devem ser, no mínimo, de 3/4” e para as tomadas de placa de orifícios que são de 1/2”.
7.1.3 Requisitos para Projeto Mecânico
7.1.3.1 Devem ter projeto próprio de detalhamento, com isométrico e “as built” de campo.
7.1.3.2 Os suportes tipo braçadeira devem ter a porca ponteada com solda e ser instalada
uma chapa de desgaste entre o tubo e a braçadeira.
7.1.3.3 Não é permitido soldar suportes das tubulações sobre máquinas e sobre tubulações
com possibilidade de vibração.
7.1.3.4 No caso de isolamento térmico das linhas de aço inoxidável, deve ser instalada uma
folha de alumínio entre a linha e o isolante, para impedir a condensação da umidade
presente no isolante térmico sobre o tubo.
7.2 Requisitos para TPD dos Sistemas Auxiliares de Bombas de Produto
7.2.1 Consideram-se como sistemas auxiliares de bombas, segundo a norma API 610, os
seguintes serviços:
a) linhas auxiliares de processo (“auxiliary process fluid piping”);
b) linhas de vapor (“steam piping”);
c) linhas de água de resfriamento (“cooling-water piping”);
d) linhas de óleo de lubrificação (“lubricating oil piping”).
7.2.2 Para as linhas no item 7.2.1, conforme a norma API 610, o fabricante da bomba é o
responsável pelo projeto e fornecimento, dentro dos limites da base da bomba, devendo ser
atendidos os requisitos do item 7.2.3 desta Norma.
7.2.3 Requisitos Gerais
7.2.3.1 Prover fácil operação e manutenção, arranjando devidamente as linhas no contorno
da base da bomba, sem obstruir o acesso.
7.2.3.2 As linhas devem ter projeto próprio de detalhamento, com “as built” de campo.
N-57 REV. E AGO / 2005
21
7.2.3.3 Prever a drenagem completa da bomba, sem desmontagem das linhas.
7.2.3.4 Prevenir a formação de bolsão de ar na bomba.
7.2.3.5 Devem ser usados materiais conforme a norma API SDT 614. A sobrespessura para
corrosão adotada deve ser compatível com a taxa de corrosão esperada para o fluido
bombeado.
7.2.3.6 Prever niple com 150 mm de comprimento com par de flanges, em todas as linhas
auxiliares, o mais próximo possível da bomba, para facilitar a desmontagem e remoção.
7.2.3.7 Os PIs e TIs devem ter bloqueio e dreno e serem instalados nas linhas adjacentes
interligadas à bomba com luva roscada, nunca no corpo da bomba.
7.2.3.8 Para desmontagem das linhas, deve ser usado par de flanges e não usar união.
7.2.3.9 Não se admitem flanges dos tipos sobrepostos (“slip on”) ou de virola (“lap joint”).
Devem ser usados flanges para solda de encaixe.
7.2.3.10 Devem ser utilizadas válvulas e acessórios do tipo com extremidades para solda
de encaixe (ES).
7.2.3.11 Para inspeção de fabricação e montagem aplicam-se as disposições da norma
PETROBRAS N-115.
7.2.3.12 Não é permitido soldar suportes das tubulações sobre equipamentos dinâmicos.
7.2.3.13 No caso do isolamento térmico das linhas de aço inoxidável, deve ser instalada
uma folha de alumínio entre a linha e o isolante, para impedir a condensação da umidade
presente no isolante térmico sobre o tubo.
7.2.4 Requisitos Específicos para as Linhas Auxiliares de Processo
As linhas conectadas ao corpo da bomba:
a) linhas de equalização (“balance lines”);
b) linhas de “quench”;
c) linhas de escorva;
d) linhas de recirculação;
e) linhas de “flushing” ou purga;
f) linhas de selagem;
g) linhas para injeção de fluidos externos;
h) linhas entre o selo mecânico e a bomba;
i) linhas de suspiros e drenos.
N-57 REV. E AGO / 2005
22
7.2.4.1 Devem ser adotados os requisitos das normas API STD 614 e API STD 682 e das
normas PETROBRAS N-553 e N-2543.
7.2.4.2 Tubo de Condução
a) materiais (ver TABELA 3);
TABELA 3 - MATERIAIS PARA TUBO DE CONDUÇÃO
Material Limite de Aplicação
ASTM A 106 Gr B Temperatura ≤ 260 °C
ASTM A 335 Gr P5 SC
Temperatura > 260 °C
Teor de Cl > 10 ppm
ASTM A 312 Gr TP316 SC
Temperatura > 260 °C
Teor de Cl ≤ 10 ppm
b) extremidade: ponta lisa
c) limites de espessura (ver TABELA 4).
TABELA 4 - LIMITE DE ESPESSURA PARA TUBO DE CONDUÇÃO
Material Faixa de Diâmetro Espessura Mínima
1/2” a 3/4” SCH 80
Aço-carbono e aço-liga
1” a 1 1/2“ SCH 160
Aço inoxidáveis 1/2” a 1 1/2” SCH 80S
7.2.4.3 Tubo de troca térmica:
a) material: ASTM A 269 Gr 316, recozido, com dureza máxima de 25 HRC, para
teor de Cl ≤ 10 ppm;
b) espessura mínima: 1 mm;
c) para interligação com extremidades roscadas, usar conexões tipo anilha em
ASTM A 564 Gr 630, 1/4 “ - 3/4“ - 3 000# - CCT x RO - ASTM A 182 Gr F316 e
porca em ASTM A 182 Gr F316;
d) para interligação com extremidades para solda de encaixe de tubos de
aço-carbono, usar conexões tipo anilha: 1/4 “ - 3/4“ - 3 000# - CCT x ES -
ASTM A 105 e porca em ASTM A 105 revestida conforme Nota 11 da norma
PETROBRAS N-76.
7.2.4.4 Usar acessórios, válvulas e flanges com extremidades para solda de encaixe.
7.2.4.5 Conexões roscadas só devem ser utilizado quando absolutamente necessário,
como em conexões de sobrepostas de selos mecânicos e de “flushing” de caixas de
gaxetas.
7.2.5 Requisitos Específicos para as Linhas de Vapor
N-57 REV. E AGO / 2005
23
7.2.5.1 Não devem ser usadas linhas de cobre.
7.2.5.2 Tubo de condução:
a) material: ASTM A 106 Gr B;
b) extremidade: ponta lisa;
c) limites de espessura (ver TABELA 5).
TABELA 5 - LIMITE DE ESPESSURA PARA TUBO DE CONDUÇÃO - LINHAS DE
VAPOR
Faixa de diâmetro Espessura mínima
1/2” a 1 1/2 “ SCH 80
7.2.5.3 Tubo de troca térmica:
a) material: ASTM A 269 Gr 316, recozido, com dureza máxima de 25 HRC, para
teor de Cl ≤ 10 ppm;
b) espessura mínima: 1 mm;
c) para interligação com extremidades roscadas, usar conexões tipo anilha em
ASTM A 564 Gr 630, 1/4” - 3/4” - 3 000# - CCT x RO - ASTM A 182 Gr F316 e
porca em ASTM A 182 Gr F316;
d) para interligação com extremidades para solda de encaixe de tubos de
aço-carbono, usar conexões tipo anilha: 1/4” - 3/4” - 3 000# - CCT x ES - ASTM
A 105 e porca em ASTM A 105 revestida conforme Nota 11 da norma
PETROBRAS N-76.
7.2.5.4 Usar acessórios, válvulas e flanges soldados, com extremidades para solda de
encaixe.
7.2.6 Requisitos Específicos para as Linhas para Água de Resfriamento
7.2.6.1 Tubo de condução:
a) material: aço-carbono galvanizado;
b) extremidade: ponta lisa;
c) limites de espessura (ver TABELA 6).
TABELA 6 - LIMITE DE ESPESSURA PARA TUBO DE CONDUÇÃO - ÁGUA DE
RESFRIAMENTO
Faixa de Diâmetro Espessura Mínima
1/2” a 1 1/2 “ SCH 80
7.2.6.2 Tubo de troca térmica:
a) material: ASTM A 269 Gr 316, recozido, com dureza máxima de 25 HRC, para
teor de Cl ≤ 10 ppm;
N-57 REV. E AGO / 2005
24
b) espessura mínima: 1 mm;
c) para interligação com extremidades roscadas, usar conexões tipo anilha em
ASTM A 564 Gr 630, 1/4” - 3/4” - 3 000# - CCT x RO - ASTM A 182 Gr F316 e
porca em ASTM A 182 Gr F316;
d) para interligação com extremidades para solda encaixe de tubos de
aço-carbono, usar conexões tipo anilha: 1/4” - 3/4” - 3 000# - CCT x ES -
ASTM A 105 e porca em ASTM A 105 revestida conforme Nota 11 da norma
PETROBRAS N-76.
7.2.7 Requisitos Específicos para as Linhas de Óleo de Lubrificação
7.2.7.1 Não deve ser usado tubo de aço-carbono com ou sem requisito de limpeza.
7.2.7.2 Tubo de condução:
a) material: ASTM A 312 Gr TP316 SC;
b) extremidade: ponta lisa;
c) limites de espessura (ver TABELA 7).
TABELA 7 - LIMITE DE ESPESSURA PARA TUBO DE CONDUÇÃO - ÓLEO DE
LUBRIFICAÇÃO
Faixa de Diâmetro Espessura Mínima
1/2” a 1 1/2 “ SCH 80S
7.2.7.3 Tubo de troca térmica:
a) material: ASTM A 269 Gr 316, recozido, com dureza máxima de 25 HRC, para
teor de Cl ≤ 10 ppm;
b) espessura mínima: 1 mm;
c) para interligação com extremidades roscadas, usar conexões tipo anilha em
ASTM A 564 Gr 630, 1/4 “ - 3/4 “ - 3 000# - CCT x RO - ASTM A 182 Gr F316 e
porca em ASTM A 182 Gr F316;
d) para interligação com extremidades para solda encaixe de tubos de
aço-carbono, usar conexões tipo anilha: 1/4 “ - 3/4 “ - 3 000# - CCT x ES -
ASTM A 105 e porca em ASTM A 105 revestida conforme Nota 11 da norma
PETROBRAS N-76.
7.2.7.4 Nas linhas após o reservatório de óleo até a caixa de mancais os acessórios,
válvulas e flanges devem ser com extremidade para solda de topo, sem o uso de
mata-juntas. Apenas para o caso das linhas de retorno ao reservatório de óleo, admitem-se
solda de encaixe. Ligações roscadas são usadas em conexões de instrumentos e onde
linhas de “tubing” são usadas.
7.2.7.5 Trechos horizontais devem ter caimento (maior que 1:50), no sentido do reservatório
de óleo.
7.2.7.6 Ramais devem ser minimizados e entrar a 45º, no sentido do fluxo da linha principal.
N-57 REV. E AGO / 2005
25
7.2.7.7 Realizar limpeza com solvente antes da operação.
7.3 Requisitos para TPDs de Sistemas de Instrumentação e Controle
7.3.1 São estabelecidos nesse item os requisitos para TPD de sistemas de instrumentação
e controle interligados aos equipamentos e às tubulações que operam em serviços críticos
ou perigosos.
7.3.2 Devem ser adotados os requisitos das normas PETROBRAS N-858, N-1882, N-1931
e N-2022.
7.3.3 Requisitos para as Tomadas de Linha de Instrumentos
7.3.3.1 Nas interligações das linhas de impulso de instrumentos, flanges de orifícios e
transmissores, às tubulações e aos equipamentos, os materiais dos tubos, acessórios e
válvulas devem atender aos requisitos da norma PETROBRAS N-76 e aos requisitos
adicionais desta Norma até o primeiro bloqueio. A válvula de bloqueio que separa o
equipamento ou tubulação do instrumento deve ser acessível e seguir a especificação de
tubulação correspondente, conforme FIGURA 1. A terminação com rosca para as conexões
de instrumentos ou transmissores (inclusive de tomadas de flanges de orifícios) não é
permitida, usar conexões para solda de encaixe. A exceção é a conexão com rosca de
instalação e remoção dos manômetros, conforme norma PETROBRAS N-2022 utilizando-se
os padrões P-007 ou P-008. Neste caso, utilizar a pasta vedante à base de grafite. É vedado
o uso de fita vedante de 1)
Teflon®
ou à base de cobre.
MEIA-LUVA
MÍNIMO
VER NORMA PETROBRAS N-76
LINHA DE INSTRUMENTAÇÃO OU
IMPULSO (NORMA PETROBRAS N-1931)
PAINEL LOCAL
OU DE CAMPO
CABO OU FIBRA ÓTICA
NIPLE
TRANSMISSOR OU
INSTRUMENTO DE CAMPO
FIGURA 1 - ESQUEMA DAS INTERLIGAÇÕES DAS TOMADAS DE LINHAS DE
INSTRUMENTAÇÕES
1)
Teflon
®
é marca registrada da DuPont para resinas, filmes, fitas e fibras de politetrafluoretileno (PTFE), sendo
um exemplo adequado de um produto comercialmente disponível. Esta informação é dada para facilitar aos
usuários na utilização desta Norma e não significa uma recomendação do produto citado por parte da
PETROBRAS. É possível ser utilizado produto comprovadamente equivalente, desde que conduza a resultado
igual.
N-57 REV. E AGO / 2005
26
7.3.3.2 As tomadas das linhas de instrumentação devem ser instaladas e montadas
conforme os requisitos de controle de qualidade da norma PETROBRAS N-115, e
respeitando os mesmos critérios da padronização da norma PETROBRAS N-76
selecionada, com relação ao ENDs, execução de tratamento térmico e testes de
estanqueidade e de pressão.
7.3.3.3 Na instalação de instrumentos com registro no campo e dos transmissores, o
comprimento da linha desde a interligação à tubulação ou ao equipamento deve ser o menor
possível (ver FIGURA 1). Se, por razões de acesso requerido ao instrumento ou ao
transmissor, a linha for extensa, esta linha deve ter suportação adequada. Como regra geral
não usar suporte tipo pedestal para instrumentos de campo, a suportação deve ser feita no
corpo do próprio equipamento ou tubulação, para prevenir o rompimento da linha de
interligação.
7.3.4 Tubulações de PSVs
Na instalação de válvulas de alívio térmico em tubulações, o comprimento da linha entre a
conexão e a PSV deve ser o menor possível, prevendo-se suporte quando há risco de
vibração.
Nota: Para as demais tubulações de pequeno diâmetro, não enquadradas nas
descrições dos itens 7.1, 7.2 e 7.3, valem os requisitos gerais do corpo desta
Norma.
8 VÁLVULAS
8.1 Considerações Gerais
8.1.1 Todas as válvulas devem ser instaladas de modo que haja facilidade de operação e
possibilidade de desmontagem ou remoção quando necessário. As válvulas operadas por
alavanca devem ser instaladas com folga suficiente que permita a manobra da alavanca. As
válvulas motorizadas devem também ter acesso para operação manual.
8.1.2 As válvulas que forem operadas com freqüência devem ficar em posição tal que
possam ser facilmente operadas do piso ou da plataforma. Para as válvulas colocadas com
a haste na horizontal, a elevação da válvula, acima do piso de operação deve ser, no
máximo, de 1 900 mm. Para elevações superiores, podem ser instaladas válvulas, providas
de acionamento por corrente (ver FIGURA A-3, referência 10), desde que não sejam de
operação freqüente.
8.1.3 Para válvulas situadas sob plataformas ou em trincheiras admite-se o uso de hastes
de extensão.
8.1.4 As válvulas devem sempre ser colocadas de forma que suas hastes ou alavancas não
obstruam ou dificultem a passagem de pessoas, para operação e manutenção.
N-57 REV. E AGO / 2005
27
8.1.5 Nenhuma válvula deve ser colocada com a haste voltada para baixo.
8.1.6 Devem ser empregadas válvulas providas de tubo de contorno (by-pass) com válvula
de bloqueio em linhas de vapor no limite da unidade, quando especificado pelo projeto ou
padronização de material.
8.1.7 Como regra geral, em todos os sistemas de tubulação, o número de válvulas deve ser
o mínimo possível, compatível com as necessidades de operação, manutenção e segurança
da instalação. São indicados a seguir alguns casos em que é necessária a instalação de
válvulas, além das que forem indicadas nos fluxogramas de engenharia ou exigidas de
acordo com outros itens desta Norma:
a) limites de unidades de processo e limites de propriedade: são exigidas válvulas
de bloqueio em todas as tubulações, devendo também, nos limites de
unidades, ser prevista instalação de “Figura 8” junto às válvulas;
b) pontos de utilização (o mais próximo possível) em todas as tubulações de
utilidades (ver item 11.6);
c) linhas de vapor para processo interligadas com qualquer equipamento, ou linha
de processo, devem ter uma válvula de retenção o mais próximo possível do
ponto de interligação, ou entre o ponto de interligação e a válvula de bloqueio,
quando for o caso;
d) linhas de óleo combustível ou de gás combustível para fornos e caldeiras: deve
ser instalada uma válvula de bloqueio, afastada do forno ou da caldeira, em
local acessível para operação de emergência;
e) tubulação de saída de qualquer equipamento onde houver possibilidade de
inversão de fluxo: colocação de uma válvula de retenção;
f) todos os equipamentos que possam ser temporariamente retirados de
operação, sem interromper o funcionamento da unidade: colocação de válvulas
de bloqueio junto a todos os bocais; considerar a necessidade de bloqueio
duplo, com trava de acionamento, para visores de nível em vasos com
hidrogênio e outras situações de risco;
g) sistemas em que a contaminação recíproca não puder ser admitida: colocação
de 2 válvulas de bloqueio (uma em seguida à outra), com um dreno entre as
válvulas, em todos os pontos de ligação de um sistema no outro;
h) nos pontos de interligação de sistemas provisórios com tubulações definitivas
(“tie in”), geralmente também é necessária a colocação de válvulas de
bloqueio;
i) nos pontos de montagem de ramais novos com tronco em operação (utilização
de “Hot Tapping Machine”): é necessária a instalação de válvula de bloqueio;
caso esta válvula seja definitiva, deve ser convenientemente locada para
facilidades de operação corriqueira.
8.2 Válvulas de Segurança e de Alívio
8.2.1 Devem ser previstas válvulas de alívio em tubulações contendo líquidos, nos trechos
compreendidos entre 2 válvulas de bloqueio.
8.2.2 As válvulas de segurança devem, de preferência, descarregar para o topo de um tubo
coletor. Esse coletor não pode ter pontos baixos. A tubulação entre a válvula de segurança e
o coletor deve ter declividade constante para o coletor. Quando essa disposição não for
possível, deve ser prevista uma linha de drenagem, com 3/4” de diâmetro mínimo, saindo do
ponto mais baixo da tubulação, e levando até um local seguro.
N-57 REV. E AGO / 2005
28
8.2.3 No tubo de descarga de válvula de segurança para a atmosfera, deve ser previsto furo
de 10 mm de diâmetro para servir como dreno.
8.2.4 A descarga de qualquer válvula de segurança para a atmosfera deve ser localizada de
forma a não atingir pessoas ou equipamentos.
8.2.5 As válvulas de segurança devem ser colocadas junto da tubulação ou equipamento
que estão protegendo. Nos casos em que isto não for possível, deve ser verificada a perda
de carga na tubulação de entrada da válvula, segundo a norma API RP 520.
8.2.6 Não devem ser usadas válvulas de bloqueio entre equipamentos e tubulações
protegidas e as válvulas de segurança e alívio, bem como entre estas válvulas e os pontos
de descarga, exceto nas condições previstas pelas normas ASME B31.3, B31.4 e B31.8.
8.2.7 As tubulações de descarga das válvulas de segurança e alívio devem ser
convenientemente suportadas considerando-se as vibrações e outros efeitos dinâmicos
peculiares ao tipo de escoamento. Deve, também, ser previsto fácil acesso para
manutenção dessas válvulas.
8.3 Válvulas de Controle
8.3.1 A instalação das válvulas de controle deve ser feita como mostra a FIGURA A-12,
prevendo-se válvulas de bloqueio (antes e depois), e linha de contorno com válvula de
regulagem, sempre que isto não for proibido pelo processo.
8.3.2 Como regra geral, as bitolas para tubulação de contorno, bloqueio e controle devem
estar de acordo com a norma API RP 553 para as válvulas de controle de 12” e menores,
exceto quando indicado em contrário nos fluxogramas de engenharia. Para as válvulas de
controle com diâmetro nominal acima de 12”, estas dimensões devem ser definidas para
cada caso. Recomenda-se que as válvulas de regulagem sejam do tipo globo até 8”, e
gaveta para diâmetros maiores. [Prática Recomendada]
8.3.3 Deve ser deixado espaço suficiente para a desmontagem e manutenção do diafragma
e da haste da válvula.
8.3.4 As válvulas de controle devem, sempre que possível, ficar no nível do piso, em local
de fácil acesso. (ver FIGURA A-3, referência 14).
8.3.5 As válvulas de controle de nível em vasos devem ser instaladas de tal maneira que o
indicador de nível seja visível durante a operação da válvula de regulagem da linha de
contorno.
8.3.6 Devem ser previstos suportes adequados nas válvulas de controle, a fim de se evitar
vibrações nas válvulas.
N-57 REV. E AGO / 2005
29
8.3.7 Quando a válvula de controle ou de regulagem for operada manualmente e em um
conjunto com um instrumento indicador (de vazão, pressão ou outra variável), a válvula e o
instrumento devem ser instalados próximos, de forma que o operador da válvula possa
observar o instrumento.
9 JUNTAS DE EXPANSÃO
9.1 O emprego de juntas de expansão deve ser evitado sempre que possível, preferindo-se
um traçado com mudanças de direção no plano ou no espaço, de forma que as tubulações
tenham flexibilidade própria e não causem sobre os equipamentos esforços ou tensões
superiores aos admissíveis.
9.2 Quando forem usadas juntas de expansão, o sistema deve ser convenientemente
suportado, ancorado e guiado, a fim de que as juntas não sejam submetidas ao peso das
tubulações ou quaisquer outros esforços ou tensões superiores aos admissíveis.
9.3 Todas as juntas de expansão (com exceção das juntas com articulação) devem ficar
obrigatoriamente entre 2 pontos de ancoragem, sendo que entre esses 2 pontos só pode
haver uma única junta de expansão. Entende-se como ponto de ancoragem as ancoragens
propriamente ditas e os pontos de ligação a qualquer equipamento preso por chumbadores.
10 SISTEMAS DE PURGA PARA TUBULAÇÕES E EQUIPAMENTOS
10.1 Devem ser previstos purgadores para a drenagem de linhas de vapor nos seguintes
pontos:
a) pontos baixos da tubulação;
b) pontos onde a tubulação aumenta de elevação (no sentido do fluxo), devendo o
purgador ser colocado no trecho de elevação mais baixo, o mais próximo
possível do ponto de aumento de elevação;
c) antes de todas as válvulas de bloqueio, de controle e de retenção, bem como
antes de extremidades fechadas com flanges cegos, tampões ou outros
dispositivos de bloqueio;
d) na entrada de qualquer máquina a vapor;
e) nos trechos horizontais de grande extensão, convenientemente espaçados.
10.2 Os sistemas de purga devem estar de acordo com a norma PETROBRAS N-116.
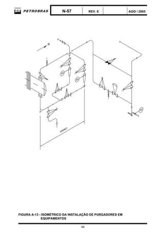
10.3 Além dos purgadores para a drenagem de tubulações de vapor, devem ainda ser
previstos purgadores na saída de qualquer aparelho em que o vapor seja usado como meio
de aquecimento (aquecedores, serpentinas, refervedores, vasos com camisa de vapor e
outros equipamentos com finalidade similar). Neste caso, o purgador deve ser colocado na
própria tubulação de saída de condensado, o mais próximo possível do bocal de saída do
aparelho, como mostram as FIGURAS A-13 e A-14.
N-57 REV. E AGO / 2005
30
10.4 A descarga dos purgadores deve ser feita, preferencialmente, para uma rede de coleta
de condensado, podendo ser feita para a atmosfera nos casos em que for economicamente
mais favorável. No caso de descarga para a atmosfera, o tubo de descarga deve ser
localizado de forma que o jato de vapor seja dirigido para o solo, (de preferência conduzido
para a drenagem pluvial local) e não possa atingir pessoas ou equipamentos. Onde
necessário usar amortecedores.
10.5 Os purgadores devem ser dimensionados pelos seguintes critérios:
a) purgadores para drenagem de linhas de vapor: conforme norma
PETROBRAS N-116;
b) purgadores para saída de aparelhos de aquecimento: a capacidade desses
purgadores deve ser igual ou maior do que o consumo de vapor do aparelho de
aquecimento.
11 SUPORTES, APOIOS E RESTRIÇÕES DE TUBULAÇÃO
11.1 A terminologia e os detalhes construtivos dos suportes, apoios e restrições devem
estar de acordo com a norma PETROBRAS N-1758.
11.2 Toda tubulação deve ser convenientemente suportada, apoiada, guiada e ancorada, a
fim de evitar tensões excessivas na própria tubulação e nos equipamentos ligados na
tubulação, bem como para limitar deslocamentos. Os suportes de tubulação próximos a
bocais de equipamentos rotativos e bocais inferiores do equipamento de caldeiraria devem
ser de tipo regulável, de modo a facilitar montagem, teste e manutenção.
11.3 Para o dimensionamento dos suportes, apoios e restrições e de suas funções, devem
ser considerados os critérios de cálculo constantes da norma PETROBRAS N-1673.
11.4 Como regra geral, todos os equipamentos ligados à rede de tubulações devem ter
suportação própria, não se admitindo que sejam suportados simplesmente pela tubulação.
11.5 O critério para identificação de suportes, apoios e restrições deve ser conforme a
norma PETROBRAS N-1758.
11.6 Os vãos entre os suportes de tubulação não devem ter valores maiores do que os
estabelecidos na norma PETROBRAS N-46. Para tubos de outros materiais ou de diâmetros
e espessuras que não constam da norma PETROBRAS N-46, os vãos máximos devem ser
calculados como indicado na norma PETROBRAS N-1673.
11.7 Os tubos devem ser deixados completamente livres para se moverem sobre os
suportes, devendo ser evitado o uso de grampos, braçadeiras e outros meios de fixação dos
tubos nos suportes, exceto nos pontos onde forem previstos no projeto fixações especiais
para a tubulação (restrições, ancoragens, guias e batentes).
11.8 Devem ser empregados suportes de mola em todos os pontos em que a tubulação
tenda a se levantar dos suportes, por efeito da dilatação do próprio tubo, de equipamentos
ou outros tubos ligados ao tubo considerado.
N-57 REV. E AGO / 2005
31
11.9 Devem ser previstas ancoragens nos seguintes pontos dos sistemas de tubulação:
a) limites de unidades de processo e limites de propriedade;
b) entre 2 juntas de expansão (como recomendado no item 9.3);
c) entre 2 curvas de expansão (“loopings”), tubulações de traçado geral retilíneo.
11.10 Apoio da linha nos suportes (ver FIGURA A-3, referência 4).
11.10.1 Todas as tubulações não isoladas e de diâmetro nominal igual ou inferior a
14” devem se apoiar diretamente nos vergalhões dos suportes; para diâmetros superiores
devem ser utilizados berços.
11.10.2 Em instalações suscetíveis a precipitações atmosféricas ou umidade relativa do ar
elevada, que provocam intensa corrosão externa do tubo nos interstícios com o suporte
(vergalhões), podem, a critério do órgão usuário, ser utilizados selas ou patins em
tubulações com diâmetros nominais iguais ou superiores a 1 1/2”.
11.10.3 As tubulações com isolamento térmico, qualquer que seja o tipo e finalidade do
isolamento, não devem se apoiar diretamente nos suportes, usando-se patins e berços, para
que o isolamento não encoste nos suportes. Ver norma PETROBRAS N-1758.
11.10.4 Para as tubulações quentes de diâmetro nominal maior que 3/4”, os patins e berços
devem ser de aço, com 100 mm de altura e comprimento suficiente para acomodar, com
folga, os movimentos de dilatação, exigindo-se sempre um comprimento mínimo
de 300 mm.
11.10.5 Para as tubulações operando a baixas temperaturas, os patins e berços devem ser
conforme a norma PETROBRAS N-896.
11.11 Para tubulações em aços-liga, os apoios (patins e berços) soldados à tubulação,
confeccionados em aço-carbono, só são admitidos se as tensões na região de solda não
comprometerem o desempenho do componente.
11.12 Para tubulações de materiais que necessitam de tratamento térmico, os patins,
berços, guias, ancoragens, não devem ter elementos soldados ao tubo, preferindo-se que
sejam fixados por meio de braçadeiras aparafusadas ou outro meio adequado. Caso não
seja possível, deve ser previsto um componente soldado ao tubo, antes do tratamento
térmico.
12 DIVERSOS
12.1 É obrigatória a colocação de respiros em todos os pontos altos, e de drenos em todos
os pontos baixos de qualquer tubulação, além daqueles solicitados pelo processo. Devem
ser previstos drenos acima das válvulas, em trechos verticais, no limite de bateria de
unidades ou de sistemas e em ambos os lados de válvulas de controle.
N-57 REV. E AGO / 2005
32
12.2 O diâmetro e os detalhes de instalação dos drenos e dos respiros devem ser como
indicado na “padronização de material de tubulação” de cada linha e conforme a norma
PETROBRAS N-108.
12.3 As tubulações de utilidades (vapor, água e ar comprimido) devem, sempre que
possível, ficar localizadas em uma das margens do grupo de tubos paralelos em uma
tubovia ou nos suportes elevados em unidades de processo.
12.4 Devem ser previstos bloqueios nas derivações das linhas principais de utilidades, de
modo a permitir a manutenção ou isolamento desses sistemas.
12.5 O projeto básico deve definir a necessidade de injeção de vapor em equipamentos e
tubulações para fins de limpeza com vapor (“steam out”) durante as partidas e paradas de
unidades e sistemas.
12.6 Devem ser obedecidos os seguintes requisitos para estações de utilidades
(FIGURA A-3, referência 2):
a) vapor, ar e água, ao nível do solo: as estações de utilidades devem ser
espaçadas de tal maneira que toda a área possa ser alcançada com uma
mangueira de 15 m de comprimento;
b) vapor e ar em plataformas alternadas de estruturas e vasos (locar em
plataformas de acesso à boca de visita);
c) as linhas de água e ar para estações de utilidades devem ser de 3/4” de
diâmetro, enquanto as de vapor devem ser de 1”;
d) cada linha para estações de utilidades deve ter uma válvula globo com
conexão de engate rápido para mangueira.
12.7 Os trechos retos de tubulação a montante e a jusante dos flanges de orifícios devem
obedecer a norma API RP 551. A instalação de flanges de orifício em elevações iguais ou
inferiores a 5 m em relação ao piso deve permitir a utilização de escada móvel. Em todos os
outros casos deve ser prevista a instalação de plataformas.
12.8 Devem ser instaladas “Figuras 8” ou raquetes (norma PETROBRAS N-120) nos
seguintes pontos:
a) em todas as linhas no limite de bateria;
b) em linhas situadas em limites de sistema a serem definidas pelo projeto básico;
c) em pontos de injeção de vapor nos equipamentos de caldeiraria;
d) em bocais de equipamento, conforme definido pelo projeto básico.
_____________
/ANEXO A
N-57 REV. E AGO / 2005
IR 1/1
ÍNDICE DE REVISÕES
REV. A, B, C e D
Não existe índice de revisões.
REV. E
Partes Atingidas Descrição da Alteração
1 e 2 Revisados
3.2 a 3.17 Incluídos
4.1.2 Revisado
4.1.3 Incluído
4.3.1, 4.3.5 Revisados
4.3.7 Incluído
4.3.8 Revisado
4.6.1 e 4.7.1 Revisados
4.9 Revisado
5.2.1 e 5.2.3 Revisados
5.3, 5.4, 5.8 Incluídos
5.17.3 Revisado
5.21 Incluído
6.1.2, 6.1.3 e 6.1.3.1 Revisados
6.2.8 e 6.2.12 Revisados
6.5.6 e 6.6.3 Revisados
6.6.10 Incluído
7.1 a 7.4 Incluídos
8.1.7 e 8.2.6 Revisados
8.3.7 Incluído
10.1,10.4 e 10.5 Revisados
11.2, 11.3, 11.5, 11.8,
11.10.2 e 11.10.3
Revisados
11.11 Incluído
12.2, 12.3, 12.5 e 12.6 Revisados
FIGURA A-3 Revisada
FIGURA A-6 Revisada
FIGURA A-9 Revisada
_____________
N-57 REV. E AGO / 2005
GRUPO DE TRABALHO GT-17-06
Membros
Nome Lotação Telefone Chave
Bruno Cambraia Lemos ENGENHARIA / IEABAST / EAB / SE 816-5805 EE5N
Carlos Frederico Guimarães Robbs AB-RE / ES / CN 814-7850 ED69
Eduardo de Araujo Saad ENGENHARIA / IEABAST / EAB / SE 816-5824 SG6J
Hernon Viana Filho E&P ENGP / IPMI / EISA 814-2575 K0M8
João Bosco Santini Pereira AB-RE / ES / TEE 814-3159 DPQ0
Jorivaldo Medeiros CENPES / EB / EQ 812-6227 BR15
Luiz Coimbra Montebello AB-RE / ES / TEE 814-6542 EG35
Otavio Lamas de Farias UN-BC / ST / EIS 861-2348 KMK6
Walter Ribeiro UN-REPLAN / EN 853-6263 RP3F
Secretário Técnico
Paulo Cezar Correa Defelippe ENGENHARIA/SL/NORTEC 817-7462 EEM8
_____________

100410818 n-0057

  • 1.
    N-57 REV. EAGO / 2005 PROPRIEDADE DA PETROBRAS 50 páginas, Índice de Revisão e GT PROJETO MECÂNICO DE TUBULAÇÕES INDUSTRIAIS Procedimento Esta Norma substitui e cancela a sua revisão anterior. Cabe à CONTEC - Subcomissão Autora, a orientação quanto à interpretação do texto desta Norma. O Órgão da PETROBRAS usuário desta Norma é o responsável pela adoção e aplicação dos seus itens. CONTEC Comissão de Normalização Técnica Requisito Técnico: Prescrição estabelecida como a mais adequada e que deve ser utilizada estritamente em conformidade com esta Norma. Uma eventual resolução de não segui-la ("não-conformidade" com esta Norma) deve ter fundamentos técnico-gerenciais e deve ser aprovada e registrada pelo Órgão da PETROBRAS usuário desta Norma. É caracterizada pelos verbos: “dever”, “ser”, “exigir”, “determinar” e outros verbos de caráter impositivo. Prática Recomendada: Prescrição que pode ser utilizada nas condições previstas por esta Norma, mas que admite (e adverte sobre) a possibilidade de alternativa (não escrita nesta Norma) mais adequada à aplicação específica. A alternativa adotada deve ser aprovada e registrada pelo Órgão da PETROBRAS usuário desta Norma. É caracterizada pelos verbos: “recomendar”, “poder”, “sugerir” e “aconselhar” (verbos de caráter não-impositivo). É indicada pela expressão: [Prática Recomendada]. SC - 17 Cópias dos registros das “não-conformidades” com esta Norma, que possam contribuir para o seu aprimoramento, devem ser enviadas para a CONTEC - Subcomissão Autora. As propostas para revisão desta Norma devem ser enviadas à CONTEC - Subcomissão Autora, indicando a sua identificação alfanumérica e revisão, o item a ser revisado, a proposta de redação e a justificativa técnico-econômica. As propostas são apreciadas durante os trabalhos para alteração desta Norma. Tubulação “A presente Norma é titularidade exclusiva da PETRÓLEO BRASILEIRO S.A. – PETROBRAS, de uso interno na Companhia, e qualquer reprodução para utilização ou divulgação externa, sem a prévia e expressa autorização da titular, importa em ato ilícito nos termos da legislação pertinente, através da qual serão imputadas as responsabilidades cabíveis. A circulação externa será regulada mediante cláusula própria de Sigilo e Confidencialidade, nos termos do direito intelectual e propriedade industrial.” Apresentação As Normas Técnicas PETROBRAS são elaboradas por Grupos de Trabalho - GTs (formados por especialistas da Companhia e das suas Subsidiárias), são comentadas pelas Unidades da Companhia e das suas Subsidiárias, são aprovadas pelas Subcomissões Autoras - SCs (formadas por técnicos de uma mesma especialidade, representando as Unidades da Companhia e as suas Subsidiárias) e homologadas pelo Núcleo Executivo (formado pelos representantes das Unidades da Companhia e das suas Subsidiárias). Uma Norma Técnica PETROBRAS está sujeita a revisão em qualquer tempo pela sua Subcomissão Autora e deve ser reanalisada a cada 5 anos para ser revalidada, revisada ou cancelada. As Normas Técnicas PETROBRAS são elaboradas em conformidade com a norma PETROBRAS N - 1. Para informações completas sobre as Normas Técnicas PETROBRAS, ver Catálogo de Normas Técnicas PETROBRAS.
  • 2.
    N-57 REV. EAGO / 2005 2 SUMÁRIO 1 OBJETIVO........................................................................................................................................................... 4 2 DOCUMENTOS COMPLEMENTARES............................................................................................................... 4 3 DEFINIÇÕES....................................................................................................................................................... 5 3.1 PROJETO MECÂNICO ......................................................................................................................... 6 3.2 PLANTAS DE ARRANJO...................................................................................................................... 6 3.3 LOCAL SEGURO .................................................................................................................................. 6 3.4 PRODUTOS QUENTES........................................................................................................................ 6 3.5 PRODUTOS FRIOS .............................................................................................................................. 6 3.6 CLASSE DE TUBULAÇÃO ................................................................................................................... 6 3.7 CONEXÃO DE PEQUENO DIÂMETRO (CPD)..................................................................................... 6 3.8 REPARO ............................................................................................................................................... 6 3.9 SISTEMA DE TUBULAÇÃO.................................................................................................................. 7 3.10 TAXA DE CORROSÃO ....................................................................................................................... 7 3.11 TUBULAÇÃO ...................................................................................................................................... 7 3.12 TUBULAÇÕES DE PROCESSO (LINHA “ON SITE”) ......................................................................... 7 3.13 TUBULAÇÕES DE TRANSFERÊNCIA (LINHAS “OFF-SITE”) ........................................................... 7 3.14 TUBULAÇÕES DE UTILIDADES ........................................................................................................ 7 3.15 TUBULAÇÕES DE PEQUENO DIÂMETRO (TPD)............................................................................. 7 3.16 SERVIÇOS CRÍTICOS OU PERIGOSOS........................................................................................... 7 3.17 CCT..................................................................................................................................................... 8 4 CONDIÇÕES GERAIS ........................................................................................................................................ 8 4.1 RESPONSABILIDADES DA PROJETISTA........................................................................................... 8 4.2 APRESENTAÇÃO DO PROJETO......................................................................................................... 8 4.3 MATERIAIS ........................................................................................................................................... 8 4.4 CRITÉRIOS DE CÁLCULO................................................................................................................. 10 4.5 IDENTIFICAÇÃO DE TUBULAÇÕES.................................................................................................. 10 4.6 COORDENADAS E ELEVAÇÕES ...................................................................................................... 10 4.7 ISOLAMENTO TÉRMICO ................................................................................................................... 10 4.8 AQUECIMENTO EXTERNO ............................................................................................................... 11 4.9 FABRICAÇÃO E MONTAGEM............................................................................................................ 11 5 DISPOSIÇÃO GERAL DAS TUBULAÇÕES...................................................................................................... 11 6 ARRANJO DE TUBULAÇÕES CONECTADAS A EQUIPAMENTOS ............................................................... 14 6.1 CONDIÇÕES GERAIS ........................................................................................................................ 14 6.2 TUBULAÇÕES LIGADAS A BOMBAS................................................................................................ 15 6.3 TUBULAÇÕES LIGADAS A TURBINAS ............................................................................................. 16 6.4 TUBULAÇÕES LIGADAS A VASOS................................................................................................... 17 6.5 TUBULAÇÕES LIGADAS A PERMUTADORES DE CALOR.............................................................. 17 6.6 TUBULAÇÕES LIGADAS A COMPRESSORES................................................................................. 18 7 REQUISITOS PARA TPD EM SERVIÇOS CRÍTICOS OU PERIGOSOS......................................................... 19 7.1 REQUISITOS PARA TPD DE PROCESSO ........................................................................................ 19 7.2 REQUISITOS PARA TPD DOS SISTEMAS AUXILIARES DE BOMBAS DE PRODUTO................... 20 7.3 REQUISITOS PARA TPDs DE SISTEMAS DE INSTRUMENTAÇÃO E CONTROLE........................ 25
  • 3.
    N-57 REV. EAGO / 2005 3 8 VÁLVULAS ........................................................................................................................................................ 26 8.1 CONSIDERAÇÕES GERAIS .............................................................................................................. 26 8.2 VÁLVULAS DE SEGURANÇA E DE ALÍVIO ...................................................................................... 27 8.3 VÁLVULAS DE CONTROLE ............................................................................................................... 28 9 JUNTAS DE EXPANSÃO .................................................................................................................................. 29 10 SISTEMAS DE PURGA PARA TUBULAÇÕES E EQUIPAMENTOS.............................................................. 29 11 SUPORTES, APOIOS E RESTRIÇÕES DE TUBULAÇÃO............................................................................. 30 12 DIVERSOS ...................................................................................................................................................... 31 ANEXO A - FIGURAS............................................................................................................................................ 33 TABELAS TABELA 1 - TEMPERATURA LIMITE DO MATERIAL............................................................................................ 9 TABELA 2 - DIMENSIONAMENTO DAS VÁLVULAS ........................................................................................... 16 TABELA 3 - MATERIAIS PARA TUBO DE CONDUÇÃO...................................................................................... 22 TABELA 4 - LIMITE DE ESPESSURA PARA TUBO DE CONDUÇÃO................................................................. 22 TABELA 5 - LIMITE DE ESPESSURA PARA TUBO DE CONDUÇÃO - LINHAS DE VAPOR ............................. 23 TABELA 6 - LIMITE DE ESPESSURA PARA TUBO DE CONDUÇÃO - ÁGUA DE RESFRIAMENTO ................ 23 TABELA 7 - LIMITE DE ESPESSURA PARA TUBO DE CONDUÇÃO - ÓLEO DE LUBRIFICAÇÃO................... 24 FIGURAS FIGURA A-1 - PONTE DE TUBULAÇÃO .............................................................................................................. 33 FIGURA A-2 - TUBULAÇÕES EM TUBOVIAS...................................................................................................... 34 FIGURA A-3 - ARRANJO ESQUEMÁTICO DE UMA UNIDADE........................................................................... 35 FIGURA A-3 - ARRANJO ESQUEMÁTICO DE UMA UNIDADE........................................................................... 36 FIGURA A-3 - ARRANJO ESQUEMÁTICO DE UMA UNIDADE........................................................................... 37 FIGURA A-3 - ARRANJO ESQUEMÁTICO DE UMA UNIDADE........................................................................... 38 FIGURA A-4 - POSICIONAMENTO DE FUROS DE FLANGES ........................................................................... 39 FIGURA A-5 - ARRANJOS TÍPICOS DE LINHAS DE SUCÇÃO DE BOMBAS .................................................... 40 FIGURA A-5 - ARRANJOS TÍPICOS DE LINHAS DE SUCÇÃO DE BOMBAS .................................................... 41 FIGURA A-6 - ARRANJO TÍPICO DE TUBULAÇÃO EM BOMBAS...................................................................... 42 FIGURA A-7 - AQUECIMENTO DE BOMBA RESERVA....................................................................................... 43 FIGURA A-8 - ARRANJO TÍPICO DE TUBULAÇÃO EM TURBINAS A VAPOR .................................................. 44 FIGURA A-9 - ESPAÇAMENTO ENTRE TUBOS E VASOS................................................................................. 45 FIGURA A-10 - ARRANJOS TÍPICOS DE TUBULAÇÕES EM COMPRESSORES.............................................. 46 FIGURA A-11 - AFASTAMENTO MÍNIMO PARA LINHAS DE SUCÇÃO DE COMPRESSORES DE AR............ 47 FIGURA A-12 - ARRANJOS TÍPICOS DE VÁLVULAS DE CONTROLE .............................................................. 48 FIGURA A-13 - ISOMÉTRICO DA INSTALAÇÃO DE PURGADORES EM EQUIPAMENTOS............................. 49 FIGURA A-14 - ELEVAÇÃO E PLANTA DE INSTALAÇÃO DE PURGADORES EM TANQUES ......................... 50 _____________ /OBJETIVO
  • 4.
    N-57 REV. EAGO / 2005 4 1 OBJETIVO 1.1 Esta Norma fixa as condições exigíveis para a execução do projeto mecânico de tubulações industriais em unidades industriais, compreendendo instalações de exploração e produção em instalações terrestres, áreas de utilidades e de processo, parques de armazenamento, bases de armazenamento e terminais (incluindo estações de bombeamento, compressão e medição, estações de tratamento de efluentes) em áreas fora de refinarias, utilizando como referência as normas ASME B31.3, B31.4 e B31.8, além da norma ISO 15649, onde aplicável e em conformidade com a Tabela 1 da norma PETROBRAS N-1673. 1.2 Esta Norma não se aplica a tubulações que pertençam a sistemas de instrumentação e controle, sistemas de despejos sanitários, sistemas de drenagem industrial, sistemas de caldeiras de vapor. Também não se aplica a instalações marítimas, oleodutos e gasodutos, tubulações pertencentes a equipamentos fornecidos pelo sistema de pacote (compactos), exceto se definido de forma diferente pela PETROBRAS. Para instalações em plataformas marítimas de produção, além das recomendações da norma ASME B31, devem ser seguidas às recomendações da norma API RP 14E. 1.3 Esta Norma se aplica a projetos para a PETROBRAS, iniciados a partir da data de sua edição. 1.4 Esta Norma contém Requisitos Técnicos e Práticas Recomendadas. 2 DOCUMENTOS COMPLEMENTARES Os documentos relacionados a seguir contêm prescrições válidas para a presente Norma. PETROBRAS N-42 - Projeto de Sistema de Aquecimento Externo de Tubulação, Equipamento e Instrumentação, com Vapor; PETROBRAS N-46 - Vãos Máximos entre Suportes de Tubulação; PETROBRAS N-58 - Símbolos Gráficos para Fluxogramas de Processo e de Engenharia; PETROBRAS N-59 - Símbolos Gráficos para Desenhos de Tubulação; PETROBRAS N-75 - Abreviaturas para os Projetos Industriais; PETROBRAS N-76 - Materiais de Tubulação para Instalações de Refino e Transporte; PETROBRAS N-105 - Espaçamento entre Tubos; PETROBRAS N-108 - Suspiros e Drenos para Tubulações e Equipamentos; PETROBRAS N-115 - Montagem de Tubulações Metálicas; PETROBRAS N-116 - Sistemas de Purga de Vapor em Tubulações; PETROBRAS N-118 - Filtro Temporário e Filtro Gaveta para Tubulação; PETROBRAS N-120 - Peças de Inserção entre Flanges; PETROBRAS N-250 - Montagem de Isolamento Térmico a Alta Temperatura; PETROBRAS N-550 - Projeto de Isolamento Térmico a Alta Temperatura; PETROBRAS N-553 - Centrifugal Pumps for General Refinery Service; PETROBRAS N-858 - Construção, Montagem e Condicionamento de Instrumentação; PETROBRAS N-894 - Projeto de Isolamento Térmico a Baixa Temperatura; PETROBRAS N-896 - Montagem de Isolamento Térmico a Baixa Temperatura;
  • 5.
    N-57 REV. EAGO / 2005 5 PETROBRAS N-1522 - Identificação de Tubulações Industriais; PETROBRAS N-1645 - Critérios de Segurança para Projeto de Instalações Fixas de Armazenamento de Gás Liqüefeito de Petróleo; PETROBRAS N-1647 - Material para Tubulação - Folha de Padronização; PETROBRAS N-1673 - Critérios de Cálculo Mecânico de Tubulação; PETROBRAS N-1674 - Projeto de Arranjo de Refinarias de Petróleo; PETROBRAS N-1692 - Apresentação de Projetos de Detalhamento de Tubulação; PETROBRAS N-1693 - Critério para Padronização de Material de Tubulação; PETROBRAS N-1758 - Suporte, Apoio e Restrição para Tubulação; PETROBRAS N-1882 - Critérios para Elaboração de Projetos de Instrumentação; PETROBRAS N-1931 - Material de Tubulação para Instrumentação; PETROBRAS N-2022 - Detalhes de Instalação de Instrumentos de Pressão; PETROBRAS N-2543 - Shaft Sealing Systems for Centrifugal and Rotary Pumps; ISO 15649 - Petroleum and Natural Gas Industries - Piping; API RP 14E - Recommended Practice for Design and Installation of Offshore Production Platform Piping Systems; API RP 520 - Sizing, Selection and Installation of Pressure-Relieving Devices in Refineries; API RP 551 - Process Measurement Instrumentation; API RP 553 - Refinery Control Valves; API STD 610 - Centrifugal Pumps for Petroleum, Petrochemical and Natural Gas Industries; API STD 611 - General-Purpose Steam Turbines for Refinery Services; API STD 612 - Special-Purpose Steam Turbines for Petroleum, Chemical, and Gas Industry Services; API STD 614 - Lubrication, Shaft-Sealing, and Control-Oil Systems and Auxiliaries for Petroleum, Chemical and Gas Industry Services; API STD 617 - Axial and Centrifugal Compressors and Expander-Compressors for Petroleum, Chemical, and Gas e Industry Services; API STD 682 - Pumps - Shaft Sealing Systems for Centrifugal and Rotary Pumps; ASME B1.20.1 - Pipe Threads, General Purpose (Inch); ASME B16.11 - Forged Fittings, Socket-Welding and Threaded; ASME B31.3 - Process Piping; ASME B31.4 - Pipeline Transportation Systems for Liquid Hydrocarbons and Other Liquids; ASME B31.8 - Gas Transmission and Distribution Piping Systems; ASME B36.10 - Welded and Seamless Wrought Steel Pipe; ASME B36.19 - Stainless Steel Pipe; NEMA SM 23 - Steam Turbines for Mechanical Drive Service. 3 DEFINIÇÕES Para propósito desta norma são adotadas as definições indicadas nos itens 3.1 a 3.17.
  • 6.
    N-57 REV. EAGO / 2005 6 3.1 Projeto Mecânico Conjunto de atividades de engenharia e o seu produto destinados a apresentar informações necessárias e suficientes para adquirir, construir, operar e manter os sistemas de tubulações de instalações petrolíferas. O conjunto de informações fornecidas pelo projeto é constituído dos documentos listados na norma PETROBRAS N-1692. Nota: Projeto mecânico e projeto de detalhamento de tubulações devem ser considerados sinônimos para fins desta Norma. 3.2 Plantas de Arranjo Para fins de aplicação desta Norma são também aplicáveis todos os termos relativos as plantas de arranjo definidos na norma PETROBRAS N-1674. 3.3 Local Seguro Região na qual é admissível a descarga de gases inflamáveis ou tóxicos. Para suspiros, conforme norma PETROBRAS N-1674. Para drenos, conforme norma PETROBRAS N-1645. 3.4 Produtos Quentes Fluidos com temperatura acima de 60 °C. 3.5 Produtos Frios Fluidos com temperatura abaixo ou igual a 60 °C. 3.6 Classe de Tubulação Grau de importância dos sistemas de tubulações, em classes, de forma a enquadrá-los em função dos efeitos à segurança das pessoas, às instalações e ao meio ambiente, decorrentes de um eventual vazamento provocado por falha do sistema. 3.7 Conexão de Pequeno Diâmetro (CPD) São consideradas conexões de pequeno diâmetro, todas as conexões que apresentem diâmetro nominal igual ou inferior a 1-1/2” (NPS ≤ 1-1/2). Ver item 3.15. 3.8 Reparo Qualquer intervenção que vise estabelecer a operacionalidade após falha ou corrigir não conformidades com relação ao projeto original.
  • 7.
    N-57 REV. EAGO / 2005 7 3.9 Sistema de Tubulação Conjunto de tubulações usadas para conduzir fluidos, interligadas entre si e/ou a equipamentos estáticos ou dinâmicos e sujeitas às mesmas condições de projeto (temperatura e pressão). 3.10 Taxa de Corrosão Número que indica a perda de espessura da tubulação ocorrida em determinado período de tempo em um ponto ou conjunto de pontos de controle e expressa em mm/ano. 3.11 Tubulação Conjunto de tubos e acessórios (válvulas, flanges, curvas, conexões, etc.) destinados ao transporte de fluidos de processo ou de utilidades. 3.12 Tubulações de Processo (Linha “On Site”) Tubulação que interliga sistemas de tubulação ou equipamentos no espaço físico definidos pelas unidades de processo, normalmente delimitadas pelo limite da bateria. 3.13 Tubulações de Transferência (Linhas “Off-Site”) Tubulações que interligam sistemas de tubulação ou equipamentos no espaço físico fora das unidades de processo. 3.14 Tubulações de Utilidades Tubulações que transportam fluidos auxiliares, necessários ao processo e armazenamento. 3.15 Tubulações de Pequeno Diâmetro (TPD) Tubulações de instalações industriais de diâmetro nominal igual ou inferior a 1 1/2”; compreendendo as linhas de processo, linhas auxiliares de máquinas e linhas de instrumentação. 3.16 Serviços Críticos ou Perigosos Para fins desta Norma, entende-se como serviços críticos ou perigosos aqueles em que há perigo de explosão, auto-ignição, fogo e/ou toxidade ambiental, nos casos de vazamentos. As alíneas a seguir, são exemplos de sistemas de tubulação nestas condições, mas não limitados a estes sistemas de tubo: a) linhas conduzindo fluidos com concentração de H2S superior a 3 % em peso; b) linhas com fluidos em pressão parcial de H2 superior a 441 kPa (4,5 kgf/cm2 ); c) linhas de solução DEA, MEA ou soda cáustica, contaminadas ou não; d) linhas com fluidos líquidos inflamáveis em temperatura de operação igual ou superior a temperatura de “flash” ou de auto-ignição; e) linhas de gás inflamável: gás residual de processo, GLP, gás combustível, gás natural e gás para tocha;
  • 8.
    N-57 REV. EAGO / 2005 8 f) linhas com produto tóxico “categoria M” da norma ASME B31.3; g) linhas de hidrocarbonetos e produtos químicos conectadas a máquinas alternativas; h) linhas de hidrocarbonetos e produtos químicos com elevado nível de vibração; i) linhas de hidrocarbonetos e produtos químicos, em temperatura de trabalho superior a 260 ºC ou pressão de trabalho superior a 2 000 kPa (20 kgf/cm2 ); j) linhas de hidrocarbonetos e produtos químicos com sobreespessura de corrosão ou erosão acima de 3,2 mm; k) linhas de hidrocarbonetos e produtos químicos sujeitas a corrosão sob tensão; l) linhas de hidrocarbonetos e produtos químicos que atingem temperaturas abaixo de 0 ºC, em caso de vazamento, devido à despressurização súbita à pressão atmosférica. 3.17 CCT Conexões a compressão para tubo (“tubing”). 4 CONDIÇÕES GERAIS 4.1 Responsabilidades da Projetista 4.1.1 A projetista deve sempre assumir a total responsabilidade sobre o projeto e elaborar desenhos detalhados, cálculos e todos os demais documentos que constituem o projeto. É de exclusiva responsabilidade da projetista a estrita observância de todas as prescrições aplicáveis desta Norma, bem como de todas as disposições legais que possam afetar o projeto mecânico de tubulações industriais. Devem também ser seguidas pela projetista todas as exigências das normas específicas para cada uma das unidades industriais citadas no item 1.1. 4.1.2 Para parques de armazenamento de GLP, devem ser consideradas adicionalmente as prescrições da norma PETROBRAS N-1645. 4.1.3 A liberação ou aceitação, total ou parcial, do projeto por parte da PETROBRAS em nada diminui a responsabilidade da projetista pelo projeto. 4.2 Apresentação do Projeto O projeto deve ser apresentado como determinado pela norma PETROBRAS N-1692. 4.3 Materiais 4.3.1 Devem ser adotadas no projeto, as padronizações de material de tubulação, da norma PETROBRAS N-76, cujas abrangências devem estar definidas na norma PETROBRAS N-1693.
  • 9.
    N-57 REV. EAGO / 2005 9 4.3.2 Para os serviços não cobertos por nenhuma das padronizações de material de tubulação, citadas no item 4.3.1, a projetista deve preparar padronizações de material utilizando o formulário padronizado pela norma PETROBRAS N-1647 devendo ser preenchidos todos os espaços que forem aplicáveis. Para elaboração destas padronizações devem-se seguir as recomendações da norma PETROBRAS N-1693. 4.3.3 Os materiais das padronizações preparadas pela projetista devem ser os que constam nas normas ISO, ABNT, ASTM, ASME e API. Somente devem ser utilizados materiais de acordo com outras normas com autorização da PETROBRAS. 4.3.4 Para temperaturas de operação superiores a 15 °C devem ser consideradas as recomendações constantes da TABELA 1. Em serviços corrosivos, os limites de temperatura devem ser estabelecidos para cada caso. TABELA 1 - TEMPERATURA LIMITE DO MATERIAL Temperatura Limite (°C) Material Resistência Mecânica (Ver Nota 1) Oxidação Superficial (Ver Nota 2) Aços-Carbono de Qualidade Estrutural (A-120) 100 530 Aços-Carbono Não Acalmados (Materiais Qualificados) (A-53, API 5L) 400 530 Aços-Carbono Acalmados, com Si (A-106) 430 530 Aços-Liga 1/2 Mo 500 530 Aços-Liga 1 1/4 Cr - 1/2 Mo 530 530 Aços-Liga 2 1/4 Cr - 1 Mo 530 570 Aços-Liga 5 Cr - 1/2 Mo 480 600 Aços Inoxidáveis 405, 410 470 700 Aços Inoxidáveis 304, 316 (ver Nota 3) 600 800 Aços Inoxidáveis 304L, 316L 430 800 Aços Inoxidáveis 310 600 800 Notas: 1) Os limites de resistência mecânica, ocorrem nas temperaturas máximas para as quais o material ainda apresenta resistência aceitável para a aplicação. 2) Os limites de oxidação superficial ocorrem nas temperaturas acima das quais o material começa a sofrer uma oxidação superficial muito intensa; esses limites não devem ser ultrapassados para serviço contínuo em nenhum caso. 3) Para temperaturas de projeto superiores a 550 °C, recomenda-se o uso de aços inoxidáveis tipo “H”. [Prática Recomendada] 4.3.5 Para temperaturas de operação inferiores a 15 °C consultar a norma PETROBRAS N-1693. 4.3.6 Para qualquer tubulação de processo, o menor diâmetro nominal é de 3/4”. Permitem-se tubulações com diâmetro mínimo de 1/2”, para tomadas de flanges de orifícios, utilidades e para linhas auxiliares de máquinas (bombas). [Prática Recomendada]
  • 10.
    N-57 REV. EAGO / 2005 10 4.3.7 Deve ser evitado o uso de tubulações com os seguintes diâmetros nominais: 1/4”, 3/8”, 3 1/2” e 5”. Permitem-se pequenos trechos de tubo ou acessório, para conectar diretamente em equipamentos. O diâmetro nominal de 2 1/2” deve ser usado somente para sistemas de água de incêndio. 4.3.8 As espessuras de paredes dos tubos de aço devem ter os valores padronizados pelas normas ASME B36.10 e ASME B36.19, constantes das normas PETROBRAS N-76 e N-1693. 4.3.9 Para evitar dificuldades na aquisição de válvulas ou conexões, as tubulações de grande diâmetro devem ter os seguintes diâmetros normais: 20”, 24”, 30”, 36”, 42”, 48”, 54” e 60”. [Prática Recomendada] 4.4 Critérios de Cálculo Os cálculos mecânicos do projeto de tubulações devem obedecer aos critérios da norma PETROBRAS N-1673. 4.5 Identificação de Tubulações Todas as tubulações devem receber um código de identificação de acordo com a norma PETROBRAS N-1522, exceto se definido de forma diferente pela PETROBRAS. A identificação de cada tubulação deve figurar obrigatoriamente, em destaque, em todos os desenhos (tais como: fluxogramas, plantas e isométricos), listas, folhas de dados e demais documentos do projeto nas quais a referida tubulação aparecer ou estiver citada. 4.6 Coordenadas e Elevações 4.6.1 Todas as construções, equipamentos e tubulações, bem como arruamentos, limites de terreno, limites de área e quaisquer outras informações relevantes de situação devem ser locados nos desenhos por coordenadas referidas a um sistema de 2 eixos ortogonais denominados “Norte-Sul de Projeto” e “Leste-Oeste de Projeto”. Nos projetos de ampliação de unidades existentes deve ser utilizado o mesmo sistema de coordenadas do projeto inicial. Em instalações flutuantes, tais como: plataformas e navios, as coordenadas podem ser referidas a proa, popa, bombordo e boreste. 4.6.2 Salvo indicação em contrário, as elevações básicas de pisos, bases de equipamentos e estruturas devem estar de acordo com a norma PETROBRAS N-1674. 4.7 Isolamento Térmico 4.7.1 O projeto e a instalação do isolamento térmico de tubulação devem obedecer às normas PETROBRAS N-250, N-550, N-894 e N-896. 4.7.2 As tubulações com isolamento térmico devem ser indicadas conforme as normas PETROBRAS N-58 e N-59, na Folha de Dados de tubulação e nos documentos de projeto necessários.
  • 11.
    N-57 REV. EAGO / 2005 11 4.8 Aquecimento Externo O projeto para aquecimento externo de tubulações deve ser conforme a norma PETROBRAS N-42. 4.9 Fabricação e Montagem A fabricação e a montagem de tubulações devem estar de acordo com a norma PETROBRAS N-115. 5 DISPOSIÇÃO GERAL DAS TUBULAÇÕES 5.1 O arranjo das tubulações deve ser o mais econômico, levando-se em conta as necessidades de processo, montagem, operação, segurança e facilidades de manutenção. Deve ser prevista a possibilidade de ampliação futura nos arranjos de tubulação, reservando-se espaço para esse fim. 5.2 Como regra geral, as tubulações devem ser instaladas acima do nível do solo. 5.2.1 Em terminais, parques de armazenamento e bases de provimento, permitem-se o uso de tubulações enterradas. A projetista deve avaliar o auto benefício desta solução, levando também em consideração os requisitos de segurança. 5.2.2 Em refinarias, unidades de processamento em geral e em indústrias petroquímicas, permitem-se tubulações enterradas somente para drenagem e para linhas de incêndio dentro de unidades de processo. 5.2.3 Tubulações com isolamento térmico ou com aquecimento, em princípio não devem ser enterradas. Caso seja imprescindível, devem ser tomados cuidados quanto à preservação do aquecimento, garantindo a integridade do isolamento e permitindo a dilatação térmica. 5.3 A altura mínima, acima do solo ou de um piso, para qualquer tubulação não subterrânea, dentro ou fora de áreas de processo, deve ser de, no mínimo, 300 mm, medidos a partir de geratriz inferior externa dos tubos. Essa altura deve ser sempre aumentada, quando necessário, para a instalação de acessórios na parte inferior dos tubos, como, por exemplo, botas para recolhimento de condensado e drenos com válvulas. 5.4 Devem ser evitadas as tubulações dentro de canaletas. Permite-se esse tipo de construção para linhas de drenagem, de água de resfriamento e de despejos, dentro de unidades de processo, e para linhas de sucção de máquinas, quando não houver outra alternativa viável.
  • 12.
    N-57 REV. EAGO / 2005 12 5.5 As tubulações devem formar grupos paralelos, com a mesma elevação de geratriz externa inferior dos tubos (elevação de fundo). Esses grupos paralelos devem, sempre que possível, ter uma direção ortogonal de projeto (Norte-Sul ou Leste-Oeste), ou a direção vertical. As tubulações que trabalham em temperatura elevada devem ficar externamente no grupo de tubos paralelos e na maior elevação da tubovia para facilitar a colocação das curvas de expansão. Os tubos mais pesados devem ficar na menor elevação da ponte de tubulação e mais próximos das colunas da ponte de tubulação. Grupos de tubulações horizontais paralelos devem ter elevações diferentes para direções diferentes. As tubulações que tenham derivações para diversas unidades ou para equipamentos de um lado ou de outro de uma tubovia central devem, preferencialmente, ficar no centro da tubovia. Por razões econômicas, tubos de grandes diâmetros ou com materiais especiais podem ter tratamento diferente do anteriormente descrito (ver FIGURA A-3, referências 4 e 6). 5.6 Dentro de áreas de processo, a maior parte possível das tubulações deve ser instalada sobre tubovias elevadas (pontes de tubulação), como mostra a FIGURA A-1. Quando previsto tráfego de veículos, essas tubovias devem ter uma altura tal que permita um arranjo de tubulação com espaços livres mínimos de 4 m de altura por 3 m de largura. Quando for previsto tráfego somente de pessoas, a altura pode ser reduzida para 3 m e a largura 1,5 m. Quando estiver previsto o trânsito de equipamentos de movimentação ou elevação de cargas os espaços sob as tubovias devem ser adequados a esses equipamentos. Permitem-se trechos de tubulação a pequena altura do piso, desde que não obstruam as vias de tráfego de veículos e pessoas. Por razões de processo ou econômicas, permitem-se tubulações instaladas a grandes alturas convenientemente suportadas, ligando diretamente equipamentos entre si. 5.7 As tubulações de interligação, fora de áreas de processo, devem ser instaladas, sempre que possível, sobre suportes a pequena altura do piso. Havendo cruzamento com ruas ou avenidas, as tubulações devem ser instaladas em trincheiras (tubovias) permitindo a passagem de veículos em pontilhões, por cima das tubulações conforme mostra a FIGURA A-2. Em casos especiais pode ser analisada a não colocação de trincheira (travessias de linhas de incêndio ou linhas solitárias). A profundidade da trincheira deve ser a mínima possível, suficiente para: a) permitir a construção dos pontilhões; b) permitir que uma derivação do tubo de maior diâmetro possa passar por baixo da rua; c) deixar uma folga suficiente para permitir a entrada de pessoas por baixo dos pontilhões, para a inspeção e pintura das tubulações. 5.8 As tubulações sobre tubovias elevadas devem ser dispostas de tal forma, que as linhas de pequeno diâmetro fiquem entre 2 linhas de grandes diâmetro, permitindo que as primeiras se apoiem nas últimas (suportes “caronas”) e reduzindo assim a necessidade de suportes intermediários. 5.9 Todas as tubulações elevadas devem ser projetadas de forma que não obstruam o acesso para pessoas. As tubulações não devem ser apoiadas sobre plataformas ou passadiços. 5.10 Devem ser sempre reservados espaços nos suportes elevados de tubulação (pontes de tubulação ou tubovias), para a passagem de dutos de instrumentação e cabos elétricos. Esses espaços, em princípio, são os seguintes (ver FIGURA A-3, referência 8):
  • 13.
    N-57 REV. EAGO / 2005 13 a) 800 mm x 300 mm - espaço total para dutos de instrumentação elétrica; b) 1 000 mm x 300 mm - interligações aéreas elétricas para iluminação e alimentação de cargas. 5.10.1 Deve ser previsto, nas tubovias em geral, espaço de 25 % da sua largura para ampliação futura. 5.10.2 Para cada projeto e para cada caso as dimensões finais das tubovias devem ser aprovadas pela PETROBRAS. 5.11 O espaçamento entre tubulações paralelas deve ter, no mínimo, os valores dados na norma PETROBRAS N-105, devendo-se levar em conta os deslocamentos que as tubulações possam ter em conseqüência das dilatações térmicas. 5.12 No caminhamento das tubulações deve ser prestada especial atenção aos casos em que haja alguma exigência de processo, tais como: declividade constante, ausência de pontos altos e mínimo de perda de carga. 5.13 O arranjo de toda tubulação deve ser feito prevendo-se acesso rápido e seguro aos equipamentos, válvulas e instrumentos, tanto para a manutenção como para operação (ver FIGURA A-3, referência 13). As tubulações e suportes devem ser locados de forma a permitirem a fácil desmontagem e retirada de todas as peças que forem desmontáveis. 5.14 Sempre que possível todos os bocais de descarga de grupos de bombas devem estar no mesmo alinhamento. 5.15 As curvas de expansão devem ser colocadas em elevação superior à tubulação (espaciais), exceto quando não for permitido por motivo de processo (linhas com declive constante, fluxo em 2 fases e algumas linhas de sucção de bombas). Devem ser evitadas as curvas de expansão no plano vertical. 5.16 Todas as tomadas de utilidades, óleo de lavagem e “flushing”, bem como as linhas de válvulas de segurança devem ser instalada no topo da linha-tronco (ver item 5.21). 5.17 As mudanças de direção devem obedecer aos requisitos apresentados nos itens 5.17.1 a 5.17.5. 5.17.1 As mudanças de direção das tubulações devem ser feitas com o uso de curvas, joelhos, tês, cruzetas ou podem ser feitas por curvamento do próprio tubo. O uso de tê flangeado deve ser minimizado. 5.17.2 O curvamento dos tubos deve ser feito segundo os requisitos da norma PETROBRAS N-115.
  • 14.
    N-57 REV. EAGO / 2005 14 5.17.3 Para o curvamento de tubos utilizando método convencional, o raio de curvatura médio deve ser, no mínimo, 5 vezes o diâmetro nominal do tubo. Para o curvamento de tubos pelo método de indução por alta freqüência, podem ser utilizados raios de curvatura médios de até 1,5 vez o diâmetro nominal, dependendo do procedimento de execução a ser aprovado pela PETROBRAS. [Prática Recomendada] 5.17.4 As curvas em gomos devem ser projetadas segundo a norma ASME B31.3. 5.17.5 Em todos os casos acima, quando a curva não for a de raio longo, deve ser indicado nos desenhos qual foi a curva usada. 5.18 O emprego de flanges deve ser minimizado, permitindo-se normalmente apenas para ligações a válvulas, vasos, tanques, bombas ou outros equipamentos. Podem ser flangeadas as tubulações que necessitem de desmontagem freqüente para limpeza ou inspeção e as tubulações com revestimento interno. 5.19 As tubulações com isolamento térmico devem obrigatoriamente ser providas de patins ou berços (ver item 11.10.3), para a proteção do isolamento térmico, qualquer que seja o material, o diâmetro ou o serviço da tubulação (ver FIGURA A-3, referência 7). 5.20 Todos os flanges devem ser colocados de forma que a vertical ou as linhas Norte-Sul de projeto passem pelo meio do intervalo entre 2 furos (ver FIGURA A-4). 5.21 Recomenda-se que, para tubulações de diâmetros iguais ou superiores a 30”, conduzindo líquido ou sujeitas a esforços dinâmicos ou ainda cuja perda de carga seja crítica , as derivações sejam feitas a 45° com o sentido de fluxo. [Pratica Recomendada] 6 ARRANJO DE TUBULAÇÕES CONECTADAS A EQUIPAMENTOS 6.1 Condições Gerais 6.1.1 Nas tubulações de entrada de qualquer máquina (tais como bombas, turbinas e compressores) deve ser previsto um filtro temporário, de acordo com a norma PETROBRAS N-118, exceto quando houver um filtro permanente na tubulação. A instalação do filtro temporário deve ser de forma que permita a sua fácil colocação e retirada. 6.1.2 As forças e os momentos causados pela tubulação sobre os bocais de qualquer máquina (devido à dilatação térmica, peso próprio ou de qualquer outra origem), devem ficar abaixo dos limites admissíveis fornecidos pelos fabricantes dessas máquinas. Os valores dados nas normas API STD 610, API STD 611, API STD 612, API STD 617 e NEMA SM 23, podem ser tomados com uma indicação preliminar, devendo-se observar entretanto que a utilização dessas normas só é possível para as máquinas projetadas e construídas de acordo com todas as exigências dessas mesmas normas.
  • 15.
    N-57 REV. EAGO / 2005 15 6.1.3 O projeto das tubulações deve ser feito de forma que os vasos e equipamentos possam ser bloqueados para manutenção, com facilidade e sem risco. O bloqueio deve ser feito com o uso de válvulas de bloqueio e peças “Figuras 8”, localizadas em pontos estratégicos da tubulação e com fácil acesso do solo, de alguma plataforma ou piso de operação, definidos em acordo com a PETROBRAS durante o detalhamento. As “Figuras 8” devem ser representadas nos fluxogramas de engenharia. 6.1.3.1 Em tubulações suportadas ligadas a bocais inferiores de equipamentos, devem ser previstos suportes reguláveis, de forma a permitir a introdução de raquetes. 6.1.3.2 Quando essas peças de bloqueio não forem previstas, o arranjo de tubulações deve permitir a remoção de válvulas ou de outros componentes, para a colocação de flanges cegos, tampões ou bujões. 6.2 Tubulações Ligadas a Bombas 6.2.1 O arranjo das tubulações deve ser tal que permita o fácil e livre acesso para a operação e manutenção da bomba e retirada da bomba e de seu acionador, com o mínimo possível de desmontagem na tubulação. Deve ser previsto um espaço mínimo de 1 500 mm no lado do acionador da bomba (ver FIGURA A-3, referência 19). Nas FIGURAS A-3 e A-5 estão apresentados alguns arranjos típicos. 6.2.2 As válvulas para a operação das bombas devem ser de fácil acesso, devendo-se evitar o emprego de acionamento por corrente ou hastes de extensão. 6.2.3 Devem ser previstos drenos a montante das válvulas de sucção no ponto mais baixo e a jusante das válvulas de retenção na descarga, de modo que se possam efetuar operações de drenagem total e limpeza de linhas com as bombas bloqueadas (ver FIGURA A-6 e norma PETROBRAS N-108). Nota: Quando for possível drenar a tubulação de sucção através da bomba, pode-se dispensar o dreno a montante da válvula de sucção. [Prática Recomendada] 6.2.4 O traçado das tubulações de sucção deve ser o mais curto e direto possível, sem pontos altos ou baixos, levando-se em conta a necessária flexibilidade térmica para as linhas. 6.2.5 A colocação de válvulas junto às bombas deve obedecer aos seguintes critérios: a) bombas com sucção afogada, ou bombas em paralelo succionando de uma mesma linha-tronco: colocação obrigatória de uma válvula de bloqueio junto ao bocal de sucção de cada bomba; essa válvula não é recomendada para as bombas com sucção não afogada, e que não estejam em paralelo com outras bombas; b) bombas com sucção não afogada: colocação obrigatória de uma válvula de retenção (válvula de pé), na extremidade livre da linha de sucção, suficientemente mergulhada no líquido do reservatório de sucção; c) tubulação de recalque (qualquer caso): colocação obrigatória de uma válvula de bloqueio junto ao bocal de saída de cada bomba;
  • 16.
    N-57 REV. EAGO / 2005 16 d) bombas com recalque para um nível estático mais elevado ou bombas em paralelo recalcando para uma mesma linha-tronco: colocação obrigatória de uma válvula de retenção junto ao bocal de saída de cada bomba, além da válvula de bloqueio na alínea c). 6.2.6 Cuidados especiais devem ser tomados em tubulações ligadas ás bombas alternativas, com o intuito de prevenir vibrações indesejáveis aos sistemas. 6.2.7 Quando o bocal da bomba for de diâmetro menor do que a tubulação ligada ao bocal, recomenda-se o uso da TABELA 2 para o dimensionamento das válvulas junto à bomba. [Prática Recomendada] TABELA 2 - DIMENSIONAMENTO DAS VÁLVULAS Bocal Diâmetro Nominal do Bocal Diâmetro Nominal da Válvula Um diâmetro nominal menor que a linha O mesmo da linha Sucção 2 ou mais diâmetros nominais menores do que a linha Um diâmetro nominal menor que a linha Descarga Menor que a linha Um diâmetro nominal maior que o bocal 6.2.8 Quando a tubulação de sucção for de diâmetro maior do que o bocal de entrada da bomba, a redução colocada junto à bomba deve ser de acordo com as FIGURAS A-5 e A-6. 6.2.9 Os ramais para 2 ou mais bombas que operam em paralelo, succionando da mesma linha-tronco, bem como para as bombas centrífugas tipo sucção dupla, devem ser os mais simétricos possíveis, com a mesma perda de carga, de forma a evitar o fluxo preferencial por um ramal. 6.2.10 Para sistemas operando a temperaturas superiores a 300 °C, a bomba reserva deve ser mantida aquecida através de recirculação do fluido, conforme esquema mostrado na FIGURA A-7. 6.2.11 Para bombas de deslocamento positivo deve ser previsto by-pass com válvula de alívio na descarga com a capacidade de vazão da bomba. 6.2.12 As tubulações de descarga de bombas dosadoras devem atender aos requisitos estabelecidos pelo fabricante. 6.3 Tubulações Ligadas a Turbinas 6.3.1 São aplicáveis as mesmas exigências e recomendações dos itens 6.2.1 e 6.2.2, na FIGURA A-8 está apresentado um esquema típico.
  • 17.
    N-57 REV. EAGO / 2005 17 6.3.2 A tubulação de entrada de vapor na turbina deve, de preferência, ser vertical, com fluxo descendente. 6.3.3 Deve ser instalado um sistema de alívio de pressão, na tubulação de saída da turbina, e antes de qualquer válvula. Esse sistema de alívio não é necessário quando a turbina descarrega diretamente para a atmosfera. 6.3.4 Na tubulação de entrada da turbina deve ser previsto um purgador de vapor, instalado no ponto baixo, imediatamente antes da válvula de regulagem ou controle. 6.3.5 Deve ser previsto um filtro permanente na tubulação de entrada da turbina, sempre que não houver um filtro integral na própria turbina. Esse filtro deve ser colocado o mais próximo possível do bocal de entrada. 6.3.6 Quando 2 ou mais turbinas têm uma válvula de controle comum, devem ser previstas válvulas de bloqueio no bocal de entrada de cada turbina. Devem ser também previstas válvulas de bloqueio na descarga de cada turbina. 6.3.7 Deve ser previsto sistema de purga na linha de entrada de vapor mesmo que a turbina tenha purgador automático de vapor. 6.4 Tubulações Ligadas a Vasos 6.4.1 O arranjo das tubulações deve ser feito de modo que não obstrua o acesso para operação, manutenção e testes. Devem ser deixados inteiramente livres os tampos de bocas de visita e outras partes desmontáveis dos vasos. As folgas necessárias entre as tubulações e os vasos, devem ser como mostram as FIGURAS A-3 e A-9. 6.4.2 Para vasos verticais, os bocais conectados a tubulações e instrumentos devem ser agrupados, preferencialmente, em 1 ou 2 setores convenientemente escolhidos no costado do vaso. 6.4.3 Todas as válvulas devem ser acessíveis para operação do piso ou plataforma. 6.4.4 Os esforços exercidos pela tubulação sobre os bocais dos vasos (devido a dilatação térmica, pesos, ou de qualquer outra origem) não devem acarretar tensões superiores às admissíveis nos bocais. A análise de flexibilidade das tubulações deve considerar os deslocamentos dos bocais dos vasos devido a dilatação térmica dos vasos. 6.5 Tubulações Ligadas a Permutadores de Calor 6.5.1 São aplicáveis as mesmas exigências do item 6.4.4.
  • 18.
    N-57 REV. EAGO / 2005 18 6.5.2 O arranjo das tubulações deve ser feito de modo que seja possível a retirada dos feixes tubulares, carretéis e tampos de casco com o mínimo de desmontagem de tubos. Não deve haver nenhuma tubulação na área em frente a tampa do carretel, dentro do espaço necessário para a remoção do feixe tubular. Deve também ser deixado livre um espaço suficiente, em todo o perímetro dos flanges do casco e do carretel, para permitir a desmontagem dos parafusos desses flanges (ver FIGURA A-3, referência 1). 6.5.3 O projeto de tubulação deve prever área para limpeza, com tomadas de água, tomadas elétricas, acesso para máquinas, iluminação, bem como estrutura saca-feixe (fixa ou móvel); deve ser estudada a conveniência de se ter talha ou ponte rolante fixa (ver FIGURA A-3, referência 20). 6.5.4 As tubulações de água de resfriamento ligadas a permutadores devem ser dispostas de forma que a água não seja drenada pela tubulação de saída, no caso de falha na alimentação. 6.5.5 Os resfriadores a ar devem ter válvulas de bloqueio nas tubulações de entrada e de saída. 6.5.6 O arranjo deve prever bloqueio (mesmo em série) e tubulações de contorno sempre que os permutadores forem passíveis de manutenção individual em serviço. 6.5.7 No caso de permutadores sobrepostos, devem ser previstas “Figuras 8” para permitir teste hidrostático individual dos equipamentos. 6.6 Tubulações Ligadas a Compressores 6.6.1 O arranjo das tubulações dos compressores deve facilitar a desmontagem da carcaça e a remoção das partes internas. 6.6.2 O arranjo de tubulação de sucção, com tomada para a atmosfera, deve ser tal que evite entrada de umidade no compressor. As linhas longas de sucção devem ser evitadas e nos casos em que sejam necessárias, devem ser montados separadores de líquido junto ao compressor. Nas FIGURAS A-10 e A-11 estão representadas algumas disposições típicas. 6.6.3 Os pontos baixos nas linhas de sucção devem ser evitados, devendo-se fazer a tubulação o mais retilíneo possível, para evitar problemas de “surge” e de perda de carga. Quando necessário, deve-se prever a eliminação do condensado e da sujeira acumulada. De preferência, a linha de sucção deve ter o fluxo ascendente. As tomadas de ar para compressores de ar devem estar longe de janelas, chaminés, descarga de gases ou qualquer outra fonte contaminante do ar, não devendo ficar em lugar que restrinja a sucção.
  • 19.
    N-57 REV. EAGO / 2005 19 6.6.4 As tubulações ligadas ao compressor não devem transmitir esforços excessivos devido a pesos, dilatação térmica, conforme previsto no item 6.1.2. Devem ser previstas ancoragens, suportes ou juntas de expansão para minimizar os efeitos de pulsações e vibrações. Os suportes devem ser convenientemente espaçados para evitar vibrações. No caso de compressor alternativo, a base do equipamento e do acionador e os suportes das tubulações a ele ligados devem ser construídos independentemente das fundações, estrutura e cobertura. De preferência, as tubulações não devem ter suportes no bloco de base do compressor. 6.6.5 As válvulas para operação do compressor devem ser acessíveis do piso ou plataformas. 6.6.6 O condensado drenado de cada estágio de pressão deve ser recolhido em tubulações independentes. Quando houver uma tubulação única de condensado, devem ser previstos meios adequados de evitar o retorno do condensado de alta pressão para os estágios de menor pressão. 6.6.7 Devem ser previstas válvulas de segurança, com capacidade igual à do compressor, entre a descarga do compressor e a válvula de bloqueio, e nas tubulações interestágios. 6.6.8 Devem ser colocados vasos amortecedores de pulsação o mais próximo possível da descarga do compressor e, se requerido, na linha de sucção. 6.6.9 Devem ser previstos filtros na linha de sucção. 6.6.10 Devem ser previstos purgadores nos pontos baixos das linhas de distribuição de ar comprimido. 7 REQUISITOS PARA TPD EM SERVIÇOS CRÍTICOS OU PERIGOSOS São apresentados a seguir os requisitos de projeto dos seguintes sistemas de tubulação: a) linhas de processo, seus by-passes e alívio térmico; b) linhas auxiliares de válvulas: “flushing”, purga, by-pass e equalização; c) linhas dos sistemas auxiliares de bombas de produtos; d) linhas de instrumentação e controle, em equipamentos e tubulações. Nota: Os drenos e suspiros instalados em tubulações devem obedecer às especificações da norma PETROBRAS N-108. 7.1 Requisitos para TPD de Processo 7.1.1 São considerados TPD de processo os seguintes sistemas de tubulação: linhas de processo, derivações, tomadas de alívio térmico e de PSVs, e, ainda, as linhas auxiliares de válvulas (“flushing”, purga, by-pass e equalização).
  • 20.
    N-57 REV. EAGO / 2005 20 7.1.2 Requisitos para Padronizações de Materiais de Tubulação 7.1.2.1 Os materiais de TPD devem atender a norma PETROBRAS N-76. 7.1.2.2 Para serviços críticos ou perigosos usar tubos de condução sem costura, extremidade lisa, com diâmetro nominal mínimo de 1”, exceto para drenos e suspiros que devem ser, no mínimo, de 3/4” e para as tomadas de placa de orifícios que são de 1/2”. 7.1.3 Requisitos para Projeto Mecânico 7.1.3.1 Devem ter projeto próprio de detalhamento, com isométrico e “as built” de campo. 7.1.3.2 Os suportes tipo braçadeira devem ter a porca ponteada com solda e ser instalada uma chapa de desgaste entre o tubo e a braçadeira. 7.1.3.3 Não é permitido soldar suportes das tubulações sobre máquinas e sobre tubulações com possibilidade de vibração. 7.1.3.4 No caso de isolamento térmico das linhas de aço inoxidável, deve ser instalada uma folha de alumínio entre a linha e o isolante, para impedir a condensação da umidade presente no isolante térmico sobre o tubo. 7.2 Requisitos para TPD dos Sistemas Auxiliares de Bombas de Produto 7.2.1 Consideram-se como sistemas auxiliares de bombas, segundo a norma API 610, os seguintes serviços: a) linhas auxiliares de processo (“auxiliary process fluid piping”); b) linhas de vapor (“steam piping”); c) linhas de água de resfriamento (“cooling-water piping”); d) linhas de óleo de lubrificação (“lubricating oil piping”). 7.2.2 Para as linhas no item 7.2.1, conforme a norma API 610, o fabricante da bomba é o responsável pelo projeto e fornecimento, dentro dos limites da base da bomba, devendo ser atendidos os requisitos do item 7.2.3 desta Norma. 7.2.3 Requisitos Gerais 7.2.3.1 Prover fácil operação e manutenção, arranjando devidamente as linhas no contorno da base da bomba, sem obstruir o acesso. 7.2.3.2 As linhas devem ter projeto próprio de detalhamento, com “as built” de campo.
  • 21.
    N-57 REV. EAGO / 2005 21 7.2.3.3 Prever a drenagem completa da bomba, sem desmontagem das linhas. 7.2.3.4 Prevenir a formação de bolsão de ar na bomba. 7.2.3.5 Devem ser usados materiais conforme a norma API SDT 614. A sobrespessura para corrosão adotada deve ser compatível com a taxa de corrosão esperada para o fluido bombeado. 7.2.3.6 Prever niple com 150 mm de comprimento com par de flanges, em todas as linhas auxiliares, o mais próximo possível da bomba, para facilitar a desmontagem e remoção. 7.2.3.7 Os PIs e TIs devem ter bloqueio e dreno e serem instalados nas linhas adjacentes interligadas à bomba com luva roscada, nunca no corpo da bomba. 7.2.3.8 Para desmontagem das linhas, deve ser usado par de flanges e não usar união. 7.2.3.9 Não se admitem flanges dos tipos sobrepostos (“slip on”) ou de virola (“lap joint”). Devem ser usados flanges para solda de encaixe. 7.2.3.10 Devem ser utilizadas válvulas e acessórios do tipo com extremidades para solda de encaixe (ES). 7.2.3.11 Para inspeção de fabricação e montagem aplicam-se as disposições da norma PETROBRAS N-115. 7.2.3.12 Não é permitido soldar suportes das tubulações sobre equipamentos dinâmicos. 7.2.3.13 No caso do isolamento térmico das linhas de aço inoxidável, deve ser instalada uma folha de alumínio entre a linha e o isolante, para impedir a condensação da umidade presente no isolante térmico sobre o tubo. 7.2.4 Requisitos Específicos para as Linhas Auxiliares de Processo As linhas conectadas ao corpo da bomba: a) linhas de equalização (“balance lines”); b) linhas de “quench”; c) linhas de escorva; d) linhas de recirculação; e) linhas de “flushing” ou purga; f) linhas de selagem; g) linhas para injeção de fluidos externos; h) linhas entre o selo mecânico e a bomba; i) linhas de suspiros e drenos.
  • 22.
    N-57 REV. EAGO / 2005 22 7.2.4.1 Devem ser adotados os requisitos das normas API STD 614 e API STD 682 e das normas PETROBRAS N-553 e N-2543. 7.2.4.2 Tubo de Condução a) materiais (ver TABELA 3); TABELA 3 - MATERIAIS PARA TUBO DE CONDUÇÃO Material Limite de Aplicação ASTM A 106 Gr B Temperatura ≤ 260 °C ASTM A 335 Gr P5 SC Temperatura > 260 °C Teor de Cl > 10 ppm ASTM A 312 Gr TP316 SC Temperatura > 260 °C Teor de Cl ≤ 10 ppm b) extremidade: ponta lisa c) limites de espessura (ver TABELA 4). TABELA 4 - LIMITE DE ESPESSURA PARA TUBO DE CONDUÇÃO Material Faixa de Diâmetro Espessura Mínima 1/2” a 3/4” SCH 80 Aço-carbono e aço-liga 1” a 1 1/2“ SCH 160 Aço inoxidáveis 1/2” a 1 1/2” SCH 80S 7.2.4.3 Tubo de troca térmica: a) material: ASTM A 269 Gr 316, recozido, com dureza máxima de 25 HRC, para teor de Cl ≤ 10 ppm; b) espessura mínima: 1 mm; c) para interligação com extremidades roscadas, usar conexões tipo anilha em ASTM A 564 Gr 630, 1/4 “ - 3/4“ - 3 000# - CCT x RO - ASTM A 182 Gr F316 e porca em ASTM A 182 Gr F316; d) para interligação com extremidades para solda de encaixe de tubos de aço-carbono, usar conexões tipo anilha: 1/4 “ - 3/4“ - 3 000# - CCT x ES - ASTM A 105 e porca em ASTM A 105 revestida conforme Nota 11 da norma PETROBRAS N-76. 7.2.4.4 Usar acessórios, válvulas e flanges com extremidades para solda de encaixe. 7.2.4.5 Conexões roscadas só devem ser utilizado quando absolutamente necessário, como em conexões de sobrepostas de selos mecânicos e de “flushing” de caixas de gaxetas. 7.2.5 Requisitos Específicos para as Linhas de Vapor
  • 23.
    N-57 REV. EAGO / 2005 23 7.2.5.1 Não devem ser usadas linhas de cobre. 7.2.5.2 Tubo de condução: a) material: ASTM A 106 Gr B; b) extremidade: ponta lisa; c) limites de espessura (ver TABELA 5). TABELA 5 - LIMITE DE ESPESSURA PARA TUBO DE CONDUÇÃO - LINHAS DE VAPOR Faixa de diâmetro Espessura mínima 1/2” a 1 1/2 “ SCH 80 7.2.5.3 Tubo de troca térmica: a) material: ASTM A 269 Gr 316, recozido, com dureza máxima de 25 HRC, para teor de Cl ≤ 10 ppm; b) espessura mínima: 1 mm; c) para interligação com extremidades roscadas, usar conexões tipo anilha em ASTM A 564 Gr 630, 1/4” - 3/4” - 3 000# - CCT x RO - ASTM A 182 Gr F316 e porca em ASTM A 182 Gr F316; d) para interligação com extremidades para solda de encaixe de tubos de aço-carbono, usar conexões tipo anilha: 1/4” - 3/4” - 3 000# - CCT x ES - ASTM A 105 e porca em ASTM A 105 revestida conforme Nota 11 da norma PETROBRAS N-76. 7.2.5.4 Usar acessórios, válvulas e flanges soldados, com extremidades para solda de encaixe. 7.2.6 Requisitos Específicos para as Linhas para Água de Resfriamento 7.2.6.1 Tubo de condução: a) material: aço-carbono galvanizado; b) extremidade: ponta lisa; c) limites de espessura (ver TABELA 6). TABELA 6 - LIMITE DE ESPESSURA PARA TUBO DE CONDUÇÃO - ÁGUA DE RESFRIAMENTO Faixa de Diâmetro Espessura Mínima 1/2” a 1 1/2 “ SCH 80 7.2.6.2 Tubo de troca térmica: a) material: ASTM A 269 Gr 316, recozido, com dureza máxima de 25 HRC, para teor de Cl ≤ 10 ppm;
  • 24.
    N-57 REV. EAGO / 2005 24 b) espessura mínima: 1 mm; c) para interligação com extremidades roscadas, usar conexões tipo anilha em ASTM A 564 Gr 630, 1/4” - 3/4” - 3 000# - CCT x RO - ASTM A 182 Gr F316 e porca em ASTM A 182 Gr F316; d) para interligação com extremidades para solda encaixe de tubos de aço-carbono, usar conexões tipo anilha: 1/4” - 3/4” - 3 000# - CCT x ES - ASTM A 105 e porca em ASTM A 105 revestida conforme Nota 11 da norma PETROBRAS N-76. 7.2.7 Requisitos Específicos para as Linhas de Óleo de Lubrificação 7.2.7.1 Não deve ser usado tubo de aço-carbono com ou sem requisito de limpeza. 7.2.7.2 Tubo de condução: a) material: ASTM A 312 Gr TP316 SC; b) extremidade: ponta lisa; c) limites de espessura (ver TABELA 7). TABELA 7 - LIMITE DE ESPESSURA PARA TUBO DE CONDUÇÃO - ÓLEO DE LUBRIFICAÇÃO Faixa de Diâmetro Espessura Mínima 1/2” a 1 1/2 “ SCH 80S 7.2.7.3 Tubo de troca térmica: a) material: ASTM A 269 Gr 316, recozido, com dureza máxima de 25 HRC, para teor de Cl ≤ 10 ppm; b) espessura mínima: 1 mm; c) para interligação com extremidades roscadas, usar conexões tipo anilha em ASTM A 564 Gr 630, 1/4 “ - 3/4 “ - 3 000# - CCT x RO - ASTM A 182 Gr F316 e porca em ASTM A 182 Gr F316; d) para interligação com extremidades para solda encaixe de tubos de aço-carbono, usar conexões tipo anilha: 1/4 “ - 3/4 “ - 3 000# - CCT x ES - ASTM A 105 e porca em ASTM A 105 revestida conforme Nota 11 da norma PETROBRAS N-76. 7.2.7.4 Nas linhas após o reservatório de óleo até a caixa de mancais os acessórios, válvulas e flanges devem ser com extremidade para solda de topo, sem o uso de mata-juntas. Apenas para o caso das linhas de retorno ao reservatório de óleo, admitem-se solda de encaixe. Ligações roscadas são usadas em conexões de instrumentos e onde linhas de “tubing” são usadas. 7.2.7.5 Trechos horizontais devem ter caimento (maior que 1:50), no sentido do reservatório de óleo. 7.2.7.6 Ramais devem ser minimizados e entrar a 45º, no sentido do fluxo da linha principal.
  • 25.
    N-57 REV. EAGO / 2005 25 7.2.7.7 Realizar limpeza com solvente antes da operação. 7.3 Requisitos para TPDs de Sistemas de Instrumentação e Controle 7.3.1 São estabelecidos nesse item os requisitos para TPD de sistemas de instrumentação e controle interligados aos equipamentos e às tubulações que operam em serviços críticos ou perigosos. 7.3.2 Devem ser adotados os requisitos das normas PETROBRAS N-858, N-1882, N-1931 e N-2022. 7.3.3 Requisitos para as Tomadas de Linha de Instrumentos 7.3.3.1 Nas interligações das linhas de impulso de instrumentos, flanges de orifícios e transmissores, às tubulações e aos equipamentos, os materiais dos tubos, acessórios e válvulas devem atender aos requisitos da norma PETROBRAS N-76 e aos requisitos adicionais desta Norma até o primeiro bloqueio. A válvula de bloqueio que separa o equipamento ou tubulação do instrumento deve ser acessível e seguir a especificação de tubulação correspondente, conforme FIGURA 1. A terminação com rosca para as conexões de instrumentos ou transmissores (inclusive de tomadas de flanges de orifícios) não é permitida, usar conexões para solda de encaixe. A exceção é a conexão com rosca de instalação e remoção dos manômetros, conforme norma PETROBRAS N-2022 utilizando-se os padrões P-007 ou P-008. Neste caso, utilizar a pasta vedante à base de grafite. É vedado o uso de fita vedante de 1) Teflon® ou à base de cobre. MEIA-LUVA MÍNIMO VER NORMA PETROBRAS N-76 LINHA DE INSTRUMENTAÇÃO OU IMPULSO (NORMA PETROBRAS N-1931) PAINEL LOCAL OU DE CAMPO CABO OU FIBRA ÓTICA NIPLE TRANSMISSOR OU INSTRUMENTO DE CAMPO FIGURA 1 - ESQUEMA DAS INTERLIGAÇÕES DAS TOMADAS DE LINHAS DE INSTRUMENTAÇÕES 1) Teflon ® é marca registrada da DuPont para resinas, filmes, fitas e fibras de politetrafluoretileno (PTFE), sendo um exemplo adequado de um produto comercialmente disponível. Esta informação é dada para facilitar aos usuários na utilização desta Norma e não significa uma recomendação do produto citado por parte da PETROBRAS. É possível ser utilizado produto comprovadamente equivalente, desde que conduza a resultado igual.
  • 26.
    N-57 REV. EAGO / 2005 26 7.3.3.2 As tomadas das linhas de instrumentação devem ser instaladas e montadas conforme os requisitos de controle de qualidade da norma PETROBRAS N-115, e respeitando os mesmos critérios da padronização da norma PETROBRAS N-76 selecionada, com relação ao ENDs, execução de tratamento térmico e testes de estanqueidade e de pressão. 7.3.3.3 Na instalação de instrumentos com registro no campo e dos transmissores, o comprimento da linha desde a interligação à tubulação ou ao equipamento deve ser o menor possível (ver FIGURA 1). Se, por razões de acesso requerido ao instrumento ou ao transmissor, a linha for extensa, esta linha deve ter suportação adequada. Como regra geral não usar suporte tipo pedestal para instrumentos de campo, a suportação deve ser feita no corpo do próprio equipamento ou tubulação, para prevenir o rompimento da linha de interligação. 7.3.4 Tubulações de PSVs Na instalação de válvulas de alívio térmico em tubulações, o comprimento da linha entre a conexão e a PSV deve ser o menor possível, prevendo-se suporte quando há risco de vibração. Nota: Para as demais tubulações de pequeno diâmetro, não enquadradas nas descrições dos itens 7.1, 7.2 e 7.3, valem os requisitos gerais do corpo desta Norma. 8 VÁLVULAS 8.1 Considerações Gerais 8.1.1 Todas as válvulas devem ser instaladas de modo que haja facilidade de operação e possibilidade de desmontagem ou remoção quando necessário. As válvulas operadas por alavanca devem ser instaladas com folga suficiente que permita a manobra da alavanca. As válvulas motorizadas devem também ter acesso para operação manual. 8.1.2 As válvulas que forem operadas com freqüência devem ficar em posição tal que possam ser facilmente operadas do piso ou da plataforma. Para as válvulas colocadas com a haste na horizontal, a elevação da válvula, acima do piso de operação deve ser, no máximo, de 1 900 mm. Para elevações superiores, podem ser instaladas válvulas, providas de acionamento por corrente (ver FIGURA A-3, referência 10), desde que não sejam de operação freqüente. 8.1.3 Para válvulas situadas sob plataformas ou em trincheiras admite-se o uso de hastes de extensão. 8.1.4 As válvulas devem sempre ser colocadas de forma que suas hastes ou alavancas não obstruam ou dificultem a passagem de pessoas, para operação e manutenção.
  • 27.
    N-57 REV. EAGO / 2005 27 8.1.5 Nenhuma válvula deve ser colocada com a haste voltada para baixo. 8.1.6 Devem ser empregadas válvulas providas de tubo de contorno (by-pass) com válvula de bloqueio em linhas de vapor no limite da unidade, quando especificado pelo projeto ou padronização de material. 8.1.7 Como regra geral, em todos os sistemas de tubulação, o número de válvulas deve ser o mínimo possível, compatível com as necessidades de operação, manutenção e segurança da instalação. São indicados a seguir alguns casos em que é necessária a instalação de válvulas, além das que forem indicadas nos fluxogramas de engenharia ou exigidas de acordo com outros itens desta Norma: a) limites de unidades de processo e limites de propriedade: são exigidas válvulas de bloqueio em todas as tubulações, devendo também, nos limites de unidades, ser prevista instalação de “Figura 8” junto às válvulas; b) pontos de utilização (o mais próximo possível) em todas as tubulações de utilidades (ver item 11.6); c) linhas de vapor para processo interligadas com qualquer equipamento, ou linha de processo, devem ter uma válvula de retenção o mais próximo possível do ponto de interligação, ou entre o ponto de interligação e a válvula de bloqueio, quando for o caso; d) linhas de óleo combustível ou de gás combustível para fornos e caldeiras: deve ser instalada uma válvula de bloqueio, afastada do forno ou da caldeira, em local acessível para operação de emergência; e) tubulação de saída de qualquer equipamento onde houver possibilidade de inversão de fluxo: colocação de uma válvula de retenção; f) todos os equipamentos que possam ser temporariamente retirados de operação, sem interromper o funcionamento da unidade: colocação de válvulas de bloqueio junto a todos os bocais; considerar a necessidade de bloqueio duplo, com trava de acionamento, para visores de nível em vasos com hidrogênio e outras situações de risco; g) sistemas em que a contaminação recíproca não puder ser admitida: colocação de 2 válvulas de bloqueio (uma em seguida à outra), com um dreno entre as válvulas, em todos os pontos de ligação de um sistema no outro; h) nos pontos de interligação de sistemas provisórios com tubulações definitivas (“tie in”), geralmente também é necessária a colocação de válvulas de bloqueio; i) nos pontos de montagem de ramais novos com tronco em operação (utilização de “Hot Tapping Machine”): é necessária a instalação de válvula de bloqueio; caso esta válvula seja definitiva, deve ser convenientemente locada para facilidades de operação corriqueira. 8.2 Válvulas de Segurança e de Alívio 8.2.1 Devem ser previstas válvulas de alívio em tubulações contendo líquidos, nos trechos compreendidos entre 2 válvulas de bloqueio. 8.2.2 As válvulas de segurança devem, de preferência, descarregar para o topo de um tubo coletor. Esse coletor não pode ter pontos baixos. A tubulação entre a válvula de segurança e o coletor deve ter declividade constante para o coletor. Quando essa disposição não for possível, deve ser prevista uma linha de drenagem, com 3/4” de diâmetro mínimo, saindo do ponto mais baixo da tubulação, e levando até um local seguro.
  • 28.
    N-57 REV. EAGO / 2005 28 8.2.3 No tubo de descarga de válvula de segurança para a atmosfera, deve ser previsto furo de 10 mm de diâmetro para servir como dreno. 8.2.4 A descarga de qualquer válvula de segurança para a atmosfera deve ser localizada de forma a não atingir pessoas ou equipamentos. 8.2.5 As válvulas de segurança devem ser colocadas junto da tubulação ou equipamento que estão protegendo. Nos casos em que isto não for possível, deve ser verificada a perda de carga na tubulação de entrada da válvula, segundo a norma API RP 520. 8.2.6 Não devem ser usadas válvulas de bloqueio entre equipamentos e tubulações protegidas e as válvulas de segurança e alívio, bem como entre estas válvulas e os pontos de descarga, exceto nas condições previstas pelas normas ASME B31.3, B31.4 e B31.8. 8.2.7 As tubulações de descarga das válvulas de segurança e alívio devem ser convenientemente suportadas considerando-se as vibrações e outros efeitos dinâmicos peculiares ao tipo de escoamento. Deve, também, ser previsto fácil acesso para manutenção dessas válvulas. 8.3 Válvulas de Controle 8.3.1 A instalação das válvulas de controle deve ser feita como mostra a FIGURA A-12, prevendo-se válvulas de bloqueio (antes e depois), e linha de contorno com válvula de regulagem, sempre que isto não for proibido pelo processo. 8.3.2 Como regra geral, as bitolas para tubulação de contorno, bloqueio e controle devem estar de acordo com a norma API RP 553 para as válvulas de controle de 12” e menores, exceto quando indicado em contrário nos fluxogramas de engenharia. Para as válvulas de controle com diâmetro nominal acima de 12”, estas dimensões devem ser definidas para cada caso. Recomenda-se que as válvulas de regulagem sejam do tipo globo até 8”, e gaveta para diâmetros maiores. [Prática Recomendada] 8.3.3 Deve ser deixado espaço suficiente para a desmontagem e manutenção do diafragma e da haste da válvula. 8.3.4 As válvulas de controle devem, sempre que possível, ficar no nível do piso, em local de fácil acesso. (ver FIGURA A-3, referência 14). 8.3.5 As válvulas de controle de nível em vasos devem ser instaladas de tal maneira que o indicador de nível seja visível durante a operação da válvula de regulagem da linha de contorno. 8.3.6 Devem ser previstos suportes adequados nas válvulas de controle, a fim de se evitar vibrações nas válvulas.
  • 29.
    N-57 REV. EAGO / 2005 29 8.3.7 Quando a válvula de controle ou de regulagem for operada manualmente e em um conjunto com um instrumento indicador (de vazão, pressão ou outra variável), a válvula e o instrumento devem ser instalados próximos, de forma que o operador da válvula possa observar o instrumento. 9 JUNTAS DE EXPANSÃO 9.1 O emprego de juntas de expansão deve ser evitado sempre que possível, preferindo-se um traçado com mudanças de direção no plano ou no espaço, de forma que as tubulações tenham flexibilidade própria e não causem sobre os equipamentos esforços ou tensões superiores aos admissíveis. 9.2 Quando forem usadas juntas de expansão, o sistema deve ser convenientemente suportado, ancorado e guiado, a fim de que as juntas não sejam submetidas ao peso das tubulações ou quaisquer outros esforços ou tensões superiores aos admissíveis. 9.3 Todas as juntas de expansão (com exceção das juntas com articulação) devem ficar obrigatoriamente entre 2 pontos de ancoragem, sendo que entre esses 2 pontos só pode haver uma única junta de expansão. Entende-se como ponto de ancoragem as ancoragens propriamente ditas e os pontos de ligação a qualquer equipamento preso por chumbadores. 10 SISTEMAS DE PURGA PARA TUBULAÇÕES E EQUIPAMENTOS 10.1 Devem ser previstos purgadores para a drenagem de linhas de vapor nos seguintes pontos: a) pontos baixos da tubulação; b) pontos onde a tubulação aumenta de elevação (no sentido do fluxo), devendo o purgador ser colocado no trecho de elevação mais baixo, o mais próximo possível do ponto de aumento de elevação; c) antes de todas as válvulas de bloqueio, de controle e de retenção, bem como antes de extremidades fechadas com flanges cegos, tampões ou outros dispositivos de bloqueio; d) na entrada de qualquer máquina a vapor; e) nos trechos horizontais de grande extensão, convenientemente espaçados. 10.2 Os sistemas de purga devem estar de acordo com a norma PETROBRAS N-116. 10.3 Além dos purgadores para a drenagem de tubulações de vapor, devem ainda ser previstos purgadores na saída de qualquer aparelho em que o vapor seja usado como meio de aquecimento (aquecedores, serpentinas, refervedores, vasos com camisa de vapor e outros equipamentos com finalidade similar). Neste caso, o purgador deve ser colocado na própria tubulação de saída de condensado, o mais próximo possível do bocal de saída do aparelho, como mostram as FIGURAS A-13 e A-14.
  • 30.
    N-57 REV. EAGO / 2005 30 10.4 A descarga dos purgadores deve ser feita, preferencialmente, para uma rede de coleta de condensado, podendo ser feita para a atmosfera nos casos em que for economicamente mais favorável. No caso de descarga para a atmosfera, o tubo de descarga deve ser localizado de forma que o jato de vapor seja dirigido para o solo, (de preferência conduzido para a drenagem pluvial local) e não possa atingir pessoas ou equipamentos. Onde necessário usar amortecedores. 10.5 Os purgadores devem ser dimensionados pelos seguintes critérios: a) purgadores para drenagem de linhas de vapor: conforme norma PETROBRAS N-116; b) purgadores para saída de aparelhos de aquecimento: a capacidade desses purgadores deve ser igual ou maior do que o consumo de vapor do aparelho de aquecimento. 11 SUPORTES, APOIOS E RESTRIÇÕES DE TUBULAÇÃO 11.1 A terminologia e os detalhes construtivos dos suportes, apoios e restrições devem estar de acordo com a norma PETROBRAS N-1758. 11.2 Toda tubulação deve ser convenientemente suportada, apoiada, guiada e ancorada, a fim de evitar tensões excessivas na própria tubulação e nos equipamentos ligados na tubulação, bem como para limitar deslocamentos. Os suportes de tubulação próximos a bocais de equipamentos rotativos e bocais inferiores do equipamento de caldeiraria devem ser de tipo regulável, de modo a facilitar montagem, teste e manutenção. 11.3 Para o dimensionamento dos suportes, apoios e restrições e de suas funções, devem ser considerados os critérios de cálculo constantes da norma PETROBRAS N-1673. 11.4 Como regra geral, todos os equipamentos ligados à rede de tubulações devem ter suportação própria, não se admitindo que sejam suportados simplesmente pela tubulação. 11.5 O critério para identificação de suportes, apoios e restrições deve ser conforme a norma PETROBRAS N-1758. 11.6 Os vãos entre os suportes de tubulação não devem ter valores maiores do que os estabelecidos na norma PETROBRAS N-46. Para tubos de outros materiais ou de diâmetros e espessuras que não constam da norma PETROBRAS N-46, os vãos máximos devem ser calculados como indicado na norma PETROBRAS N-1673. 11.7 Os tubos devem ser deixados completamente livres para se moverem sobre os suportes, devendo ser evitado o uso de grampos, braçadeiras e outros meios de fixação dos tubos nos suportes, exceto nos pontos onde forem previstos no projeto fixações especiais para a tubulação (restrições, ancoragens, guias e batentes). 11.8 Devem ser empregados suportes de mola em todos os pontos em que a tubulação tenda a se levantar dos suportes, por efeito da dilatação do próprio tubo, de equipamentos ou outros tubos ligados ao tubo considerado.
  • 31.
    N-57 REV. EAGO / 2005 31 11.9 Devem ser previstas ancoragens nos seguintes pontos dos sistemas de tubulação: a) limites de unidades de processo e limites de propriedade; b) entre 2 juntas de expansão (como recomendado no item 9.3); c) entre 2 curvas de expansão (“loopings”), tubulações de traçado geral retilíneo. 11.10 Apoio da linha nos suportes (ver FIGURA A-3, referência 4). 11.10.1 Todas as tubulações não isoladas e de diâmetro nominal igual ou inferior a 14” devem se apoiar diretamente nos vergalhões dos suportes; para diâmetros superiores devem ser utilizados berços. 11.10.2 Em instalações suscetíveis a precipitações atmosféricas ou umidade relativa do ar elevada, que provocam intensa corrosão externa do tubo nos interstícios com o suporte (vergalhões), podem, a critério do órgão usuário, ser utilizados selas ou patins em tubulações com diâmetros nominais iguais ou superiores a 1 1/2”. 11.10.3 As tubulações com isolamento térmico, qualquer que seja o tipo e finalidade do isolamento, não devem se apoiar diretamente nos suportes, usando-se patins e berços, para que o isolamento não encoste nos suportes. Ver norma PETROBRAS N-1758. 11.10.4 Para as tubulações quentes de diâmetro nominal maior que 3/4”, os patins e berços devem ser de aço, com 100 mm de altura e comprimento suficiente para acomodar, com folga, os movimentos de dilatação, exigindo-se sempre um comprimento mínimo de 300 mm. 11.10.5 Para as tubulações operando a baixas temperaturas, os patins e berços devem ser conforme a norma PETROBRAS N-896. 11.11 Para tubulações em aços-liga, os apoios (patins e berços) soldados à tubulação, confeccionados em aço-carbono, só são admitidos se as tensões na região de solda não comprometerem o desempenho do componente. 11.12 Para tubulações de materiais que necessitam de tratamento térmico, os patins, berços, guias, ancoragens, não devem ter elementos soldados ao tubo, preferindo-se que sejam fixados por meio de braçadeiras aparafusadas ou outro meio adequado. Caso não seja possível, deve ser previsto um componente soldado ao tubo, antes do tratamento térmico. 12 DIVERSOS 12.1 É obrigatória a colocação de respiros em todos os pontos altos, e de drenos em todos os pontos baixos de qualquer tubulação, além daqueles solicitados pelo processo. Devem ser previstos drenos acima das válvulas, em trechos verticais, no limite de bateria de unidades ou de sistemas e em ambos os lados de válvulas de controle.
  • 32.
    N-57 REV. EAGO / 2005 32 12.2 O diâmetro e os detalhes de instalação dos drenos e dos respiros devem ser como indicado na “padronização de material de tubulação” de cada linha e conforme a norma PETROBRAS N-108. 12.3 As tubulações de utilidades (vapor, água e ar comprimido) devem, sempre que possível, ficar localizadas em uma das margens do grupo de tubos paralelos em uma tubovia ou nos suportes elevados em unidades de processo. 12.4 Devem ser previstos bloqueios nas derivações das linhas principais de utilidades, de modo a permitir a manutenção ou isolamento desses sistemas. 12.5 O projeto básico deve definir a necessidade de injeção de vapor em equipamentos e tubulações para fins de limpeza com vapor (“steam out”) durante as partidas e paradas de unidades e sistemas. 12.6 Devem ser obedecidos os seguintes requisitos para estações de utilidades (FIGURA A-3, referência 2): a) vapor, ar e água, ao nível do solo: as estações de utilidades devem ser espaçadas de tal maneira que toda a área possa ser alcançada com uma mangueira de 15 m de comprimento; b) vapor e ar em plataformas alternadas de estruturas e vasos (locar em plataformas de acesso à boca de visita); c) as linhas de água e ar para estações de utilidades devem ser de 3/4” de diâmetro, enquanto as de vapor devem ser de 1”; d) cada linha para estações de utilidades deve ter uma válvula globo com conexão de engate rápido para mangueira. 12.7 Os trechos retos de tubulação a montante e a jusante dos flanges de orifícios devem obedecer a norma API RP 551. A instalação de flanges de orifício em elevações iguais ou inferiores a 5 m em relação ao piso deve permitir a utilização de escada móvel. Em todos os outros casos deve ser prevista a instalação de plataformas. 12.8 Devem ser instaladas “Figuras 8” ou raquetes (norma PETROBRAS N-120) nos seguintes pontos: a) em todas as linhas no limite de bateria; b) em linhas situadas em limites de sistema a serem definidas pelo projeto básico; c) em pontos de injeção de vapor nos equipamentos de caldeiraria; d) em bocais de equipamento, conforme definido pelo projeto básico. _____________ /ANEXO A
  • 51.
    N-57 REV. EAGO / 2005 IR 1/1 ÍNDICE DE REVISÕES REV. A, B, C e D Não existe índice de revisões. REV. E Partes Atingidas Descrição da Alteração 1 e 2 Revisados 3.2 a 3.17 Incluídos 4.1.2 Revisado 4.1.3 Incluído 4.3.1, 4.3.5 Revisados 4.3.7 Incluído 4.3.8 Revisado 4.6.1 e 4.7.1 Revisados 4.9 Revisado 5.2.1 e 5.2.3 Revisados 5.3, 5.4, 5.8 Incluídos 5.17.3 Revisado 5.21 Incluído 6.1.2, 6.1.3 e 6.1.3.1 Revisados 6.2.8 e 6.2.12 Revisados 6.5.6 e 6.6.3 Revisados 6.6.10 Incluído 7.1 a 7.4 Incluídos 8.1.7 e 8.2.6 Revisados 8.3.7 Incluído 10.1,10.4 e 10.5 Revisados 11.2, 11.3, 11.5, 11.8, 11.10.2 e 11.10.3 Revisados 11.11 Incluído 12.2, 12.3, 12.5 e 12.6 Revisados FIGURA A-3 Revisada FIGURA A-6 Revisada FIGURA A-9 Revisada _____________
  • 52.
    N-57 REV. EAGO / 2005 GRUPO DE TRABALHO GT-17-06 Membros Nome Lotação Telefone Chave Bruno Cambraia Lemos ENGENHARIA / IEABAST / EAB / SE 816-5805 EE5N Carlos Frederico Guimarães Robbs AB-RE / ES / CN 814-7850 ED69 Eduardo de Araujo Saad ENGENHARIA / IEABAST / EAB / SE 816-5824 SG6J Hernon Viana Filho E&P ENGP / IPMI / EISA 814-2575 K0M8 João Bosco Santini Pereira AB-RE / ES / TEE 814-3159 DPQ0 Jorivaldo Medeiros CENPES / EB / EQ 812-6227 BR15 Luiz Coimbra Montebello AB-RE / ES / TEE 814-6542 EG35 Otavio Lamas de Farias UN-BC / ST / EIS 861-2348 KMK6 Walter Ribeiro UN-REPLAN / EN 853-6263 RP3F Secretário Técnico Paulo Cezar Correa Defelippe ENGENHARIA/SL/NORTEC 817-7462 EEM8 _____________