UNIVERSIDADE FEDERAL DE SANTA CATARINA
CENTRO TECNOLÓGICO
DEPARTAMENTO DE ENGENHARIA CIVIL
INSTALAÇÃO PREDIAL DE PREVENÇÃO
E COMBATE A INCÊNDIOS
Prof. Adolar Ricardo Bohn - M. Sc.
1
PROJETO DE INSTALAÇÃO DE COMBATE AO INCÊNDIO
Enquanto os efeitos negativos de instalações inadequadas de água potável, esgoto e águas
pluviais se processam de forma geralmente lenta, as conseqüências de um incêndio não
debelado prontamente são imediatas e sinistras. Uma instalação de proteção e combate de
incêndio é uma forma direta de salvaguardar vidas e bens materiais.
OBJETIVO GERAL DO PROJETO
Criar dispositivos capazes de detectar, informar onde iniciou e debelar com presteza um
incêndio, evitando danos materiais e perdas de vidas.
NORMAS QUE DEVEM SER SEGUIDAS
NORMAS DE SEGURANÇA CONTRA INCÊNDIOS DO CBSC (Corpo de Bombeiros de
Santa Catarina) - Decreto n° 4909 de 18 - 10 - 94, publicado no Diário Oficial n° 15042 de 19
- 10 - 94.
INSTALAÇÕES HIDRÁULICAS CONTRA INCÊNDIO, SOB COMANDO, POR
HIDRANTES E MANGOTINHOS - NBR 13714 : 1996 da ABNT.
O FOGO
O fogo é um fenômeno químico, onde ocorre uma combustão com desprendimento de calor e
eventualmente de luz. Para que haja fogo são necessárias duas condições:
1° devem existir os três elementos que compõem o triângulo do fogo. Se um deles deixar de
existir, o fogo se extinguirá. Se um deles faltar, o fogo não iniciará.
2° A seguinte condição deve ser verdadeira:
CALOR GERADO > CALOR DISSIPADO
Somente assim a temperatura poderá subir até o ponto de combustão de um determinado
combustível e se iniciar a combustão.
O COMBATE AO FOGO
O combate ao fogo consiste em eliminar pelo menos um dos elementos do triângulo do fogo,
portanto há três possibilidades:
2
a) abafamento = eliminação do oxigênio
b) eliminação do combustível = retirar ou isolar os materiais combustíveis
c) resfriamento = eliminar a fonte de calor ou dissipar o calor gerado.
CATEGORIAS DE INCÊNDIO E COMBATE APROPRIADO.
CATEGORIA A - apresenta características de ação de profundidade, requerendo emprego
de agente extintor com poder de penetração e resfriamento. Ao final deixa algum tipo de
resíduo (carvão, cinza).
CATEGORIA B - apresenta características de ação superficial, requerendo emprego de
agente extintor com poder de abafamento e permanência, a fim de isolar o combustível do
oxigênio. Não deixa resíduos.
CATEGORIA C - se carateriza pela presença de energia elétrica ( rede ativa), exige agente
extintor que não conduza eletricidade.
CATEGORIA D - é o incêndio de metais piróforos e suas ligas. Estes metais entram
espontaneamente em combustão quando entram em contato com o ar.
3
MEIOS MAIS ADEQUADOS DE COMBATE POR EXTINTOR,
EM FUNÇÃO DA CATEGORIA DO INCÊNDIO
Catego-
goria
Materiais Pó químico
seco
Gás carbônico Espuma Água em jato Água em
neblina
Freon 1301
Hallon 1301
A
Madeira, tecidos,
papéis, fibras (deixam
resíduos)
Sim (*) Sim (*) Sim Sim Sim Sim
B
Óleos, álcool, gasolina,
tintas, etc. (não deixam
resíduos)
Sim Sim Sim Não Sim (**) Sim
C Motores, geradores
(linha elétrica viva)
Sim Sim Não Não Sim (**) Sim
D Gases e metais
piróforos
Sim Não Não Não Não Sim
Agente extintor Bicarbonato de
sódio
CO2 Bolhas com gás
inerte
H2O H2O Freon
Hallon
Método de extinção Abafamento Abafamento Resfriamento
abafamento
Resfriamento
abafamento
Abafamento Inibe a reação de
combustão
Origem da pressão Cilindro de gás Compressão do
CO2
Reação expansiva Cilindro de gás Ar comprimido Compressão do
gás
Operação gatilho gatilho Inversão do
extintor
gatilho automático automático
( * ) no princípio e pequenos incêndios
( * ) exige um estudo prévio
5
ESQUEMA GENÉRICO DA INSTALAÇÃO DE COMBATE DE INCÊNDIO
POR HIDRANTE, SOB-COMANDO.
Coluna de
distribuição
Limpeza/extravasor
Válvula de retenção
Registros de gaveta
Reserva técnica
de incêndio
muro
Caixa de passeio com
Hidrante de recalque ou
de passeio
Caixa de incêndio com
Hidrante de parede
Coluna de incêndio
6
TIPOS DE PREVENÇÃO E COMBATE AO INCÊNDIO
O conceito de prevenção é mais amplo que a simples idéia do combate. O combate é de fato uma
reação após a ocorrência do incêndio. A prevenção parte do princípio de que se deve evitar o
início do fogo e evitar a sua propagação. Assim a prevenção se faz desde a concepção
arquitetônica e pode ser assim dividida:
1° PROTEÇÃO DE CONCEPÇÃO
a - portas corta-fogo, paredes e platibandas (abas) de segurança.
b - pisos, tetos e paredes incombustíveis
c - vidros resistentes no mínimo 60 min ao fogo.
d - afastamento entre edifícios
e - compartimentação de áreas
f - isolamento vertical
2° MEIOS DE FUGA
a - escada de segurança
b - iluminação de emergência
c - elevador de segurança
3° MEIOS DE COMBATE DE INCÊNDIO
a - extintores manuais e sobre rodas
b - instalações fixas: automáticas, sob-comando:
- chuveiros
- hidrantes
- hallon, freon
- nebulizadores
4° MEIOS DE ALERTA
a - detectores de fumaça
b -detectores de temperatura
c - alarmes contra incêndio
FLUXOGRAMA PARA ANALISAR OU PROJETAR A PREVENÇÃO DE INCÊNDIO
DE UMA EDIFICAÇÃO
O fluxograma a seguir tem a pretensão de auxiliar o projetista ou quem analisar um projeto de
prevenção de incêndio. A norma do CBSC é de fato muito detalhada, sendo muito difícil projetar,
sem tê-la à mão, para consultas. Em uma visão mais ampla e genérica da norma, percebe-se que
em sua elaboração houve uma preocupação de estruturá-la em capítulos que de certa forma
retratam a evolução natural do projeto. O fluxograma apresentado pretende explicitar esta relação
dos passos do projeto com os capítulos da norma.
7
FLUXOGRAMA
Classificar a edificação pela NCBSC segundo a
ocupação.
Relacionar as características físicas da edificação:
área por pavimento, área total, altura, aparelho
técnico de queima, número de pavimentos, carga
de fogo.
Com 1 e 2, identificar as sistemas preventivos que
serão exigidos ( sem detalhá-los)
Classificar a edificação quanto aos riscos de
incêndio: LEVE, MÉDIO, ELEVADO
Verificar os níveis de exigência e detalhes de
cada sistema necessário5°
4°
3°
2°
1°
CAPITULO II
DA NCBSC
Sem capítulo
da NCBSC
CAPITULO V
DA NCBSC
CAPITULO IV
DA NCBSC
CAPITULO V
AO CAPITULO
XVII DA NCBSC
CARGA DE FOGO
É um conceito inexistente na norma anterior, sendo uma das novidades, ainda não bem difundida,
da norma atual. Sua função é auxiliar na classificação das edificações quanto ao risco de incêndio
e no estabelecimento dos sistemas preventivos necessários. Consiste em transformar , através do
poder calorífico, todos os materiais combustíveis de uma edificação em seu equivalente de
madeira, por metro quadrado de área edificada.
TABELA DOS PODERES CALORÍFICOS DE ALGUNS MATERIAIS
material PC (kcal/kg) material seco
8
1.Resíduos de comida(mistura) 3324
2.Resíduos de frutas 4452
3.Resíduos de carne 6919
4.Papel Cartão 4127
5. revistas 3043
6.Papel jornal 4713
7.Papel (mistura) 4206
8.Papel cartão encerado 6513
9.Plásticos (mistura) 7995
10.polietileno 10402
11.Poliestireno 9140
12.Poliuretano 6237
13.PVC 5430
14.Têxteis 4913
15.Borracha 6123
16.Couro 4467
17.Resíduos de jardim 3613
18.Madeira(verde) 2333
19.madeiras duras 4641
20.Madeira (mistura) 4620
21.vidro e mineral 48
(tabela cedida pelo Departamento de Engenharia Ambiental e Sanitaria da UFSC)
Exemplo: Calcular a carga de fogo em uma edificação com 700m2
onde existem os seguintes
materiais combustíveis:
200 Kg de madeira dura.
500 Kg de piso de borracha
100 Kg de algodão
200 Kg de papel
70 Kg de plásticos
SOLUÇÃO:
1° O calor gerado pela combustão destes materais será:
200 Kg de madeira dura x 4641 kcal/kg = 928 200 kcal
500 Kg de piso de borracha x 6123 kcal/kg = 3 061 500 kcal
100 Kg de algodão x 4913 kcal/kg = 491 300 kcal
200 Kg de papel x 4206 kcal/kg = 841 200 kcal
70 Kg de plásticos x 7995 kcal/kg = 559 650 kcal
TOTAL = 5 881 850 kcal
2° O equivalente em madeira será:
5 881 850Kcal / 4620 kcal/kg = 1273 kg de madeira
3° A carga de fogo será:
9
Q = 1273 kg de madeira/ 700 m2
Q = 1,8Kg de madeira por metro de área edificada. Q = 1,8Kg/m2
Exemplo: Fazer o projeto preventivo de incêndio para o seguinte prédio.
Seguindo a fluxograma apresentado, teremos:
1 Classificação segundo a ocupação: OCUPAÇÃO ESCOLAR
2 As princippais características da edificação:
10
- Área por pavimento = 470 m2
11
- Área total =1908 m2
- Altura =13,00 m
- Aparelho técnico de queima = fogão
- Número de pavimentos = 4
- Carga de fogo = cálculo dispensável.
3° Os sistemas necessários são: ( ART. 20 da NCBSC)
- Sistema preventivo por extintores
- Sistema hidráulico preventivo
- Gás centralizado
- Saídas de emergência
- Pára-raios
- Sistema de alarme
- Sinalização de abandono
- Iluminação de emergência.
4° Classificação segundo o risco de incêndio: RISCO LEVE ( Capítulo IV da NCBSC)
5° Níveis de exigência de cada sistema:
5.1.EXTINTORES:
Capacidade Extintora = CE
Agente extintor Quantidade mínima, para constituir uma CE.
Espuma 10 l
Água 10 l
Gás carbônico 4 Kg
Pó-químico-seco 4 Kg
Cada capacidade extintora protege uma área mínima segundo o grau de risco:
Risco leve = 500m2
Risco médio = 250 m2
Risco elevado = 250 m2
Caminhamento máximo do operador, percurso a ser percorrido do extintor até o foco de
incêndio:
Risco leve = 20 m
Risco médio = 15 m
Risco elevado = 10 m
ART. 39 da NCBSC - Em edificações com mais de um pavimento são necessárias no mínimo
2 CE por pavimento.
Portanto, no exemplo proposto poderíamos usar dois extintores de gás carbônico de 4 kg por
pavimento. ( no comércio existem extintores de gás carbônico de 4 kg e 6 kg ).
12
5.2. SISTEMA POR HIDRANTES
ESQUEMA GERAL DO SISTEMA DE COMBATE
POR HIDRANTES SOB COMANDO
13
Exigências do sistema:
Mangueira
Diam. do
esguicho
Altura do piso Pressão
dinâmica
Diam. ComprimentoClasse de Risco
mm m mm m mca
leve 38 30 13 1,20 - 1,5 4
Médio 63 30 25 1,20 - 1,5 15
elevado 63 30 25 1,20 - 1,5 45
RESERVA TÉCNICA DE INCÊNDIO - RTI
A RTI deve garantir uma autonomia mínima de 30 minutos para o sistema:
NO RISCO LEVE: calcular a vazão do hidrante mais favorável (maior pressão) e acrescentar
2 minutos por hidrante excedente a quatro.
NO RISCO MÉDIO E ELEVADO: calcular a vazão do hidrante menos favorável (menor
pressão), acrescentar 2 minutos por hidrante excedente a quatro e considerar uso simultâneio
de:
Número de hidrantes instalados Número de hidrantes em funcionamento simultâneo
1 1
2 a 4 2
5 a 6 3
Mais que 6 4
Em qualquer caso a RTI será no mínimo 5000l
Exemplificando: 1° Caso
RTI
H1 Q1
Q2H2
Q3H3
Q4H4
Q6
H5
H6
Q5
NO CASO DE RISCO LEVE:
Calcular Q6 (vazão no H6) = l/min
Calcular a RTI:
RTI = Q6 x (30min + 4min)
RTI = Q6 x 34min = litros
NO CASO DE RISCO MÉDIO / ELEVADO:
Calcular Q1, Q2 e Q3 (vazões no H1, H2 e H3)
= l/min
Calcular RTI:
RTI = (Q1 + Q2 + Q3) x 34min
A velocidade deverá ser no máximo de 5 m/s
14
2° Caso: Neste caso todos os hidrantes estão na mesma cota, logo H1 tem maior
pressão e H7 tem a menor pressão devido à perda de carga, então:
NO RISCO LEVE: Calcular Q1 e
RTI = Q1 x 36 min. = litros
NO RISCO MÉDIO / ELEVADO:
Calcular Q7, Q6, Q5 e Q4
RTI = (Q7 + Q6 + Q5 + Q4) x 36 min = litros
RTI
H4
Q4
H1
Q1
H2
Q2
H3
Q3
H7
Q7
H5
Q5 Q6
H6
A vazão deverá ser calculada na boca do requinte pela fórmula geral para orifícios pequenos:
gH2SCQ xx
d
=
Onde: Q = vazão na boca do requinte (m3
/seg)
Cd = coeficiente de descarga = 0,98 (ART 67 da NCBSC)
S = área do bocal (m2
)
g = aceleração da gravidade (m/s2
)
H = pressão dinâmica mínima na boca do requinte (mca)
Fazendo a substituição dos valores conhecidos, chega-se à fórmula:
Hd2046,0Q x2x=
Onde: Q = vazão (l/min)
H = pressão dinâmica mínima (mca)
d = diâmetro do requinte (mm)
A perda de carga unitária (J) é calculada pela fórmula de Hazen Williams:
Onde: J = perda de carga unitária (m/m)
DC
Q641,10
J 87,4x85,1
85,1
x
=
Q = vazão (m3
/seg)
C = coeficiente de rugosidade - na tubulação C = 120 (ART 68 NCBSC)
na mangueira C = 140 (ART 68 NCBSC)
D = Diâmetro da tubulação ou mangueira ( m)
Aplicando estas condições no exemplo proposto, teremos:
Diâmentro da coluna de incêndio = 63mm (mínima admissível - ART 48)
Diâmetro da mangeuira = 38 mm
Diâmetro do esguicho = 13 mm
Hidrantes por pavimento = 1 (com 30m de mangueira atinge-se todos os pontos).
15
Teremos então o seguinte:
Em planta:
Em corte:
CÁLCULO DA VAZÃO NO HIDRANTE MAIS DESFAVORÁVEL:
HAd2046,0Q x2x
A
=
Sendo: HA = 4mca
d = 13mm
min/l15,694132046,0Q x2x
A
==
16
CÁLCULO DA PRESSÃO NO PONTO A ( PA)
PA = HA + ∆h + ∆hman tub
∆hman = perda de carga na mangueira
∆htub = perda de carga no tubo
0,5 m
Registro angular com
redução
Coluna
Tê com saída lateral
redução
Perda de carga no tubo:
Dados: D = 63mm
QA = 0,0011525m3
/s
l = 0,5m
Cálculo da perda de carga unitária no tubo:
m
m
87,4
x85,1
85,1
x
87,4x85,1
A
85,1
x
tub 0039,0J
063,0120
0011525,0641,10
DC
Q641,
J tub
====
10
Comprimentos equivalentes:
Tê de 63mm saída alteral = 3,43
Registro angular = 10,00
Redução = 0,60
14,03
Comprimento total = 14,03 + 0,5 = 14,53m
Perda de carga no tubo
∆htub = 14,53 x 0,0039 = 0,056m
Perda de carga na mangueira:
Dados: D = 38mm
QA = 0,0011525m3
/s
C = 140
l = 30m
Perda de carga unitária na mangueira:
Perda de carga na mangueira:
m
m
87,4
x85,1
85,1
x
87,4x85,1
A
85,1
x
man 0344,0J
038,0140
0011525,0641,10
DC
Q641,10
J man
====
∆hman = 30 x 0,0344 = 1,032 m
PA = 4,0 + 1,032 + 0,056 = 5,088m
17
CÁLCULO DA PRESSÃO NO PONTO B (PB):
Supondo que QB seja maior que QA, vamos adotar QB = 85 l/min = 0,00141 m3
/s
mca04,6
60,1195
7225
132046,0
85
d2046,0
QB
HB 4x2
2
4x2
2
====
Jman = 9399,38 x 0,001411,85
x 30 = 1,5mca
Jtub = 1065,88 x 0,001411,85
x 14,53 = 0,82mca
PB = 6,04 + 1,5 + 0,082 = 7,62mca
CÁLCULO DA PRESSÃO NO PONTO C (PC):
Supondo que QC seja maior que QB, vamos adotar QC = 100 l/min = 0,00166 m3
/s
mca36,8
60,1195
10000
132046,0
100
d2046,0
QC
HC 4x2
2
4x2
2
====
Jman = 9399,38 x 0,001661,85
x 30 = 2,03mca
Jtub = 1065,88 x 0,001661,85
x 14,53 = 0,11mca
PC = 8,36 + 2,03 + 0,11 = 10,50mca
CÁLCULO DA PRESSÃO NO PONTO D (PD):
Supondo que QD seja maior que QC, vamos adotar QD = 115 l/min = 0,00192m3
/s
mca06,11
60,1195
13225
132046,0
115
d2046,0
QD
HD 4x2
2
4x2
2
====
Jman = 9399,38 x 0,001921,85
x 30 = 2,66mca
Jtub = 1065,88 x 0,001921,85
x 14,53 = 0,15mca
PD = 11,06 + 2,66 + 0,15 = 13,87mca
RECÁLCULO DA PRESSÃO NO PONTO C PELA COLUNA:
QD = 115 l/min = 0,00192m3
/s
Comprimento do tubo = 4m
Comprimento equivalente: Tê passagem direta = 0,41
Comprimento total = 4,41
Jtub = 1065,88 x 0,001921,85
x 4,41 = 0,044mca
PC = 13,87 - 4 +0,044 = 9,91mca
Como 9,91< 10,50, precisamos aumentar PD, logo QD deve ser maior que a adotada.
Cálculo da PD, supondo que QD = 118 l/min = 0,00196m3
/s.
mca64,11
60,1195
118
HD
2
==
Jman = 9399,38 x 0,001961,85
x 30 = 2,76mca
Jtub = 1065,88 x 0,001961,85
x 14,53 = 0,15mca
PD = 11,64 + 2,76 + 0,15 = 14,55mca
18
RECALCULO DA PRESSÃO NO PONTO C PELA COLUNA:
Jtub = 1065,88 x 0,001961,85
x 4,41 = 0,05mca
PC = 14,55 - 4 + 0,05 = 10,6mca
RECÁLCULO DA PRESSÃO NO PONTO B:
D = 63 mm
QC = 100 l/min = 0,00166 m3
/s
Jtub = 1065,88 x 0,001661,85
x 3,41 = 0,026mca
PB = 10,6 - 3 + 0,026 = 7,72mca
Como 7,72 = 7,72 não é preciso modificar QC.
RECÁLCULO DA PRESSÃO NO PONTO A PELA COLUNA:
D = 63mm
QB = 85 l/min = 0,00141 m3
/s
Jtub = 1065,88 x 0,001411,85
x 3,41 = 0,02mca
PA = 7,62 - 3 + 0,02 = 4,64mca
Como 4,64 < 5,088, logo QB deverá ser maior.
Cálculo do PB, supondo que QB = 87 l/min = 0,0014m3
/s.
mca33,6
60,1195
87
HB
2
==
Jman = 9399,38 x 0,00141,85
x 30 = 1,48mca
Jtub = 1065,88 x 0,00141,85
x 14,53 = 0,08mca
PB = 6,33 + 1,48 + 0,08 = 7,89mca
RECÁLCLO DA PRESSÃO NO PONTO A PELA COLUNA:
Jtub = 1065,88 x 0,00141,85
x 3,41 = 0,02mca
PA = 7,89 - 3 + 0,02 = 4,91mca.
CÁLCULO DA RESERVA TÉCNICA DE INCÊNDIO - RTI
RTI = 30min x QD = 30 x 118 = 3540litros
Como 3540 < 5000, adotamos RTI = 5000litros, que é o mínimo necessário.
RTI = 5000litros
CÁLCULO DA ALTURA, (X), DO RESERVATÓRIOS SUPERIOR
Dados: D = 63mm
Comprimentos equivalentes:
Entrada normal = 0,9m
Registro de gaveta = 0,4m
Joelho = 2,35m
Tê saída lateral = 3,43m
Válvula de retenção = 8,1m
Joelho = 2,35m
Joelho = 2,35m
Total = 19,88m
Comprimento total = X + 19 + 1 + 1 + 19,88 = X + 40,88
19
PA = X - ∆HAR
∆HAR = perda de carga entre os pontos A e R.
0039,0
063,0120
00115,0641,10
DC
Q641,10
J 87,4
x85,1
85,1
x
87,4x85,1
85,1
A
x
AR
===
JAR = 0,0039m/m
∆HAR = JAR ( X + 40,88 )
∆HAR = 0,0039X + 0,0039 x 40,88
∆HAR = 0,0039X + 0,16
PA = X - (0,0039X + 0,16)
5,088 = 0,9961X - 0,16
0,9961X = 5,248
X = 5,27m
QUESTÃO PROPOSTA:
Refazer os cálculos hidráulicos, supondo que a edificação proposta tivesse risco de incêndio
MÉDIO.
Para refazer estes cálculos teríamos que introduzir as seguintes modificações na solução
anterior:
a) Para calcular QA, teríamos que usar HA = 15mca e o diâmetro do esguicho = 25mm.
b) Calcularíamos PB, PC e faríamos o recálculo pela coluna, com as devidas correções de QB
e QC. ( não seria necesário calcular PD e QD).
c) A reserva técnica de incêndio seria:
RTI = QA + QB x 30min ( considerando 2 hidrantes em uso simultâneo)
d) No cálculo de X teríamos que usar Q = QA + QB, então:
( )
DC
QQ641,10
J 87,4x85,1
BA
85,1
x
AR
+
=
20
Para determinação da altura do reservatório, pode-se utilizar um método simplificado,
conforme mostra o exemplo:
Exemplo: Calcular a altura do reservatório superior, supondo 3 hidrantes em uso simultâneo,
com três alternativas: tubo com diâmetro de 63mm, 75mm e 100mm.
CALCULO DA VAZÃO NO HIDRANTE MAIS DESFAVORÁVEL: (IDÊNTICO AO
EXEMPLO ANTERIOR)
HAd2046,0Q x2x
A
=
Sendo: HA = 4mca
d = 13mm
min/l15,694132046,0Q x2x
A
==
21
CÁLCULO DA PRESSÃO NO PONTO A ( PA)
PA = HA + ∆hman + ∆htub
∆htub = 14,53 x 0,0039 = 0,056m
∆hman = 30 x 0,0344 = 1,032 m
PA = 4,0 + 1,032 + 0,056 = 5,088m
A simplificação consiste em calcular a vazão dos demais hidrantes usando a pressão estática
no lugar da pressão dinâmica. Isto dará vazões maiores, portanto a favor da segurança.
Teremos então:
QB = 91,5 l/min = 0,00152 m3
/s
34132046,0Q x2x
B
+=
QC = 109,34 l/min = 0,0018m3
/s
334132046,0Q x2x
C
++=
QTOTAL = QA + QB + QC = 69,15 + 91,5 + 109,34 = 269,99 l/min = 0,0045m3
/s
Comprimentos equivalentes no trecho A-R
Peça 63mm 75mm 100mm
Entrada normal 0,9 1,1 1,6
Registro de gaveta 0,4 0,5 0,7
Joelho 2,35 2.82 3,76
Tê saída lateral 3,43 4,11 5,49
Válvula de retenção 8,1 9,7 12.9
Joelho 2,35 4,11 5,49
Joelho 2,35 4,11 5,49
Redução 75 x 63 ****** 0,9 0,9
Redução 100 x 75 ****** ****** 1,1
TOTAL 19,88 27,35 37,84
Comprimento Total 40,88 48,35 58,84
CÁLCULO DA PERDA DE CARGA UNITÁRIA NO TRECHO A-R
tabelaver
D120
0045,0641,10
DC
Q641,10
J 87,4x85,1
85,1
x
67,4x85,1
85,1
total
x
AR
===
D (m) JA-R (m/m)
0,63 0,48
0,075 0,021
0,10 0,005
22
CÁLCULO DE X PARA D = 63mm
PA = X - ∆hA-R
∆hA-R = JAR x (X + 40,88)
PA = X - (0,048X + 0,048 x 40,88)
5,08 = X - 0,048X - 1,96
X = 7,04 / 0,952 X = 7,39m
CÁLCULO DE X PARA D = 75mm
PA = X - ∆hA-R
∆hA-R = JAR x (X + 48,35)
PA = X - (0,021X + 0,021 x 48,35)
5,08 = X - 0,021X - 1,01
X = 6,09 / 0,979 X = 6,22m
CÁLCULO DE X PARA D = 100mm
PA = X - ∆hA-R
∆hA-R = JAR x (X + 58,84)
PA = X - (0,005X + 0,005 x 58,84)
5,08 = X - 0,005X - 0,29
X = 5,37 / 0,995 X = 5,39m
BIBLIOGRAFIA
MACINTYRE, Archibald Joseph. Manual de instalações hidráulicas e sanitárias. Ed.
Guanabara. 1990.
CREDER, hélio. Instalações hidráulicas e sanitárias. Ed. Livros Técnicos e Científicos.
1990.
BORGES, Ruth Silveira e Wellington Luiz. Manual de instalações prediais hidráulico-
sanitárias e de gás. Ed. Pini. 1992. 4. ed.
Normas de segurança contra incêndios do CBSC (Corpo de Bombeiros de Santa Catarina)
Decreto n° 4909 de 18 - 10 - 94, publicado no Diário Oficial n° 15042 de 19 - 10 - 94.
NBR 13714 Instalações hidráulicas contra incêndio, sob comando, por hidrantes e
mangotinhos. 1996 da ABNT.
23
A N E X O S
24
PERDAS DE CARGA LOCALIZADAS ( Gráfico da Grane Co.)
25
26
conexões de ferro maleável classe 10
Perdas de carga localizadas: comprimentos equivalentes em metros de canalização de aço galvanizado,
Comprimentos equivalentes em metros para bocais e válvulas
27
Perdas de carga localizadas: comprimentos equivalentes em metros de canalização de PVC rígido ou cobre.
28
29
31
33
21

Dimensionamento rede de incêndio

  • 1.
    UNIVERSIDADE FEDERAL DESANTA CATARINA CENTRO TECNOLÓGICO DEPARTAMENTO DE ENGENHARIA CIVIL INSTALAÇÃO PREDIAL DE PREVENÇÃO E COMBATE A INCÊNDIOS Prof. Adolar Ricardo Bohn - M. Sc. 1
  • 2.
    PROJETO DE INSTALAÇÃODE COMBATE AO INCÊNDIO Enquanto os efeitos negativos de instalações inadequadas de água potável, esgoto e águas pluviais se processam de forma geralmente lenta, as conseqüências de um incêndio não debelado prontamente são imediatas e sinistras. Uma instalação de proteção e combate de incêndio é uma forma direta de salvaguardar vidas e bens materiais. OBJETIVO GERAL DO PROJETO Criar dispositivos capazes de detectar, informar onde iniciou e debelar com presteza um incêndio, evitando danos materiais e perdas de vidas. NORMAS QUE DEVEM SER SEGUIDAS NORMAS DE SEGURANÇA CONTRA INCÊNDIOS DO CBSC (Corpo de Bombeiros de Santa Catarina) - Decreto n° 4909 de 18 - 10 - 94, publicado no Diário Oficial n° 15042 de 19 - 10 - 94. INSTALAÇÕES HIDRÁULICAS CONTRA INCÊNDIO, SOB COMANDO, POR HIDRANTES E MANGOTINHOS - NBR 13714 : 1996 da ABNT. O FOGO O fogo é um fenômeno químico, onde ocorre uma combustão com desprendimento de calor e eventualmente de luz. Para que haja fogo são necessárias duas condições: 1° devem existir os três elementos que compõem o triângulo do fogo. Se um deles deixar de existir, o fogo se extinguirá. Se um deles faltar, o fogo não iniciará. 2° A seguinte condição deve ser verdadeira: CALOR GERADO > CALOR DISSIPADO Somente assim a temperatura poderá subir até o ponto de combustão de um determinado combustível e se iniciar a combustão. O COMBATE AO FOGO O combate ao fogo consiste em eliminar pelo menos um dos elementos do triângulo do fogo, portanto há três possibilidades: 2
  • 3.
    a) abafamento =eliminação do oxigênio b) eliminação do combustível = retirar ou isolar os materiais combustíveis c) resfriamento = eliminar a fonte de calor ou dissipar o calor gerado. CATEGORIAS DE INCÊNDIO E COMBATE APROPRIADO. CATEGORIA A - apresenta características de ação de profundidade, requerendo emprego de agente extintor com poder de penetração e resfriamento. Ao final deixa algum tipo de resíduo (carvão, cinza). CATEGORIA B - apresenta características de ação superficial, requerendo emprego de agente extintor com poder de abafamento e permanência, a fim de isolar o combustível do oxigênio. Não deixa resíduos. CATEGORIA C - se carateriza pela presença de energia elétrica ( rede ativa), exige agente extintor que não conduza eletricidade. CATEGORIA D - é o incêndio de metais piróforos e suas ligas. Estes metais entram espontaneamente em combustão quando entram em contato com o ar. 3
  • 5.
    MEIOS MAIS ADEQUADOSDE COMBATE POR EXTINTOR, EM FUNÇÃO DA CATEGORIA DO INCÊNDIO Catego- goria Materiais Pó químico seco Gás carbônico Espuma Água em jato Água em neblina Freon 1301 Hallon 1301 A Madeira, tecidos, papéis, fibras (deixam resíduos) Sim (*) Sim (*) Sim Sim Sim Sim B Óleos, álcool, gasolina, tintas, etc. (não deixam resíduos) Sim Sim Sim Não Sim (**) Sim C Motores, geradores (linha elétrica viva) Sim Sim Não Não Sim (**) Sim D Gases e metais piróforos Sim Não Não Não Não Sim Agente extintor Bicarbonato de sódio CO2 Bolhas com gás inerte H2O H2O Freon Hallon Método de extinção Abafamento Abafamento Resfriamento abafamento Resfriamento abafamento Abafamento Inibe a reação de combustão Origem da pressão Cilindro de gás Compressão do CO2 Reação expansiva Cilindro de gás Ar comprimido Compressão do gás Operação gatilho gatilho Inversão do extintor gatilho automático automático ( * ) no princípio e pequenos incêndios ( * ) exige um estudo prévio 5
  • 6.
    ESQUEMA GENÉRICO DAINSTALAÇÃO DE COMBATE DE INCÊNDIO POR HIDRANTE, SOB-COMANDO. Coluna de distribuição Limpeza/extravasor Válvula de retenção Registros de gaveta Reserva técnica de incêndio muro Caixa de passeio com Hidrante de recalque ou de passeio Caixa de incêndio com Hidrante de parede Coluna de incêndio 6
  • 7.
    TIPOS DE PREVENÇÃOE COMBATE AO INCÊNDIO O conceito de prevenção é mais amplo que a simples idéia do combate. O combate é de fato uma reação após a ocorrência do incêndio. A prevenção parte do princípio de que se deve evitar o início do fogo e evitar a sua propagação. Assim a prevenção se faz desde a concepção arquitetônica e pode ser assim dividida: 1° PROTEÇÃO DE CONCEPÇÃO a - portas corta-fogo, paredes e platibandas (abas) de segurança. b - pisos, tetos e paredes incombustíveis c - vidros resistentes no mínimo 60 min ao fogo. d - afastamento entre edifícios e - compartimentação de áreas f - isolamento vertical 2° MEIOS DE FUGA a - escada de segurança b - iluminação de emergência c - elevador de segurança 3° MEIOS DE COMBATE DE INCÊNDIO a - extintores manuais e sobre rodas b - instalações fixas: automáticas, sob-comando: - chuveiros - hidrantes - hallon, freon - nebulizadores 4° MEIOS DE ALERTA a - detectores de fumaça b -detectores de temperatura c - alarmes contra incêndio FLUXOGRAMA PARA ANALISAR OU PROJETAR A PREVENÇÃO DE INCÊNDIO DE UMA EDIFICAÇÃO O fluxograma a seguir tem a pretensão de auxiliar o projetista ou quem analisar um projeto de prevenção de incêndio. A norma do CBSC é de fato muito detalhada, sendo muito difícil projetar, sem tê-la à mão, para consultas. Em uma visão mais ampla e genérica da norma, percebe-se que em sua elaboração houve uma preocupação de estruturá-la em capítulos que de certa forma retratam a evolução natural do projeto. O fluxograma apresentado pretende explicitar esta relação dos passos do projeto com os capítulos da norma. 7
  • 8.
    FLUXOGRAMA Classificar a edificaçãopela NCBSC segundo a ocupação. Relacionar as características físicas da edificação: área por pavimento, área total, altura, aparelho técnico de queima, número de pavimentos, carga de fogo. Com 1 e 2, identificar as sistemas preventivos que serão exigidos ( sem detalhá-los) Classificar a edificação quanto aos riscos de incêndio: LEVE, MÉDIO, ELEVADO Verificar os níveis de exigência e detalhes de cada sistema necessário5° 4° 3° 2° 1° CAPITULO II DA NCBSC Sem capítulo da NCBSC CAPITULO V DA NCBSC CAPITULO IV DA NCBSC CAPITULO V AO CAPITULO XVII DA NCBSC CARGA DE FOGO É um conceito inexistente na norma anterior, sendo uma das novidades, ainda não bem difundida, da norma atual. Sua função é auxiliar na classificação das edificações quanto ao risco de incêndio e no estabelecimento dos sistemas preventivos necessários. Consiste em transformar , através do poder calorífico, todos os materiais combustíveis de uma edificação em seu equivalente de madeira, por metro quadrado de área edificada. TABELA DOS PODERES CALORÍFICOS DE ALGUNS MATERIAIS material PC (kcal/kg) material seco 8
  • 9.
    1.Resíduos de comida(mistura)3324 2.Resíduos de frutas 4452 3.Resíduos de carne 6919 4.Papel Cartão 4127 5. revistas 3043 6.Papel jornal 4713 7.Papel (mistura) 4206 8.Papel cartão encerado 6513 9.Plásticos (mistura) 7995 10.polietileno 10402 11.Poliestireno 9140 12.Poliuretano 6237 13.PVC 5430 14.Têxteis 4913 15.Borracha 6123 16.Couro 4467 17.Resíduos de jardim 3613 18.Madeira(verde) 2333 19.madeiras duras 4641 20.Madeira (mistura) 4620 21.vidro e mineral 48 (tabela cedida pelo Departamento de Engenharia Ambiental e Sanitaria da UFSC) Exemplo: Calcular a carga de fogo em uma edificação com 700m2 onde existem os seguintes materiais combustíveis: 200 Kg de madeira dura. 500 Kg de piso de borracha 100 Kg de algodão 200 Kg de papel 70 Kg de plásticos SOLUÇÃO: 1° O calor gerado pela combustão destes materais será: 200 Kg de madeira dura x 4641 kcal/kg = 928 200 kcal 500 Kg de piso de borracha x 6123 kcal/kg = 3 061 500 kcal 100 Kg de algodão x 4913 kcal/kg = 491 300 kcal 200 Kg de papel x 4206 kcal/kg = 841 200 kcal 70 Kg de plásticos x 7995 kcal/kg = 559 650 kcal TOTAL = 5 881 850 kcal 2° O equivalente em madeira será: 5 881 850Kcal / 4620 kcal/kg = 1273 kg de madeira 3° A carga de fogo será: 9
  • 10.
    Q = 1273kg de madeira/ 700 m2 Q = 1,8Kg de madeira por metro de área edificada. Q = 1,8Kg/m2 Exemplo: Fazer o projeto preventivo de incêndio para o seguinte prédio. Seguindo a fluxograma apresentado, teremos: 1 Classificação segundo a ocupação: OCUPAÇÃO ESCOLAR 2 As princippais características da edificação: 10
  • 11.
    - Área porpavimento = 470 m2 11
  • 12.
    - Área total=1908 m2 - Altura =13,00 m - Aparelho técnico de queima = fogão - Número de pavimentos = 4 - Carga de fogo = cálculo dispensável. 3° Os sistemas necessários são: ( ART. 20 da NCBSC) - Sistema preventivo por extintores - Sistema hidráulico preventivo - Gás centralizado - Saídas de emergência - Pára-raios - Sistema de alarme - Sinalização de abandono - Iluminação de emergência. 4° Classificação segundo o risco de incêndio: RISCO LEVE ( Capítulo IV da NCBSC) 5° Níveis de exigência de cada sistema: 5.1.EXTINTORES: Capacidade Extintora = CE Agente extintor Quantidade mínima, para constituir uma CE. Espuma 10 l Água 10 l Gás carbônico 4 Kg Pó-químico-seco 4 Kg Cada capacidade extintora protege uma área mínima segundo o grau de risco: Risco leve = 500m2 Risco médio = 250 m2 Risco elevado = 250 m2 Caminhamento máximo do operador, percurso a ser percorrido do extintor até o foco de incêndio: Risco leve = 20 m Risco médio = 15 m Risco elevado = 10 m ART. 39 da NCBSC - Em edificações com mais de um pavimento são necessárias no mínimo 2 CE por pavimento. Portanto, no exemplo proposto poderíamos usar dois extintores de gás carbônico de 4 kg por pavimento. ( no comércio existem extintores de gás carbônico de 4 kg e 6 kg ). 12
  • 13.
    5.2. SISTEMA PORHIDRANTES ESQUEMA GERAL DO SISTEMA DE COMBATE POR HIDRANTES SOB COMANDO 13
  • 14.
    Exigências do sistema: Mangueira Diam.do esguicho Altura do piso Pressão dinâmica Diam. ComprimentoClasse de Risco mm m mm m mca leve 38 30 13 1,20 - 1,5 4 Médio 63 30 25 1,20 - 1,5 15 elevado 63 30 25 1,20 - 1,5 45 RESERVA TÉCNICA DE INCÊNDIO - RTI A RTI deve garantir uma autonomia mínima de 30 minutos para o sistema: NO RISCO LEVE: calcular a vazão do hidrante mais favorável (maior pressão) e acrescentar 2 minutos por hidrante excedente a quatro. NO RISCO MÉDIO E ELEVADO: calcular a vazão do hidrante menos favorável (menor pressão), acrescentar 2 minutos por hidrante excedente a quatro e considerar uso simultâneio de: Número de hidrantes instalados Número de hidrantes em funcionamento simultâneo 1 1 2 a 4 2 5 a 6 3 Mais que 6 4 Em qualquer caso a RTI será no mínimo 5000l Exemplificando: 1° Caso RTI H1 Q1 Q2H2 Q3H3 Q4H4 Q6 H5 H6 Q5 NO CASO DE RISCO LEVE: Calcular Q6 (vazão no H6) = l/min Calcular a RTI: RTI = Q6 x (30min + 4min) RTI = Q6 x 34min = litros NO CASO DE RISCO MÉDIO / ELEVADO: Calcular Q1, Q2 e Q3 (vazões no H1, H2 e H3) = l/min Calcular RTI: RTI = (Q1 + Q2 + Q3) x 34min A velocidade deverá ser no máximo de 5 m/s 14
  • 15.
    2° Caso: Nestecaso todos os hidrantes estão na mesma cota, logo H1 tem maior pressão e H7 tem a menor pressão devido à perda de carga, então: NO RISCO LEVE: Calcular Q1 e RTI = Q1 x 36 min. = litros NO RISCO MÉDIO / ELEVADO: Calcular Q7, Q6, Q5 e Q4 RTI = (Q7 + Q6 + Q5 + Q4) x 36 min = litros RTI H4 Q4 H1 Q1 H2 Q2 H3 Q3 H7 Q7 H5 Q5 Q6 H6 A vazão deverá ser calculada na boca do requinte pela fórmula geral para orifícios pequenos: gH2SCQ xx d = Onde: Q = vazão na boca do requinte (m3 /seg) Cd = coeficiente de descarga = 0,98 (ART 67 da NCBSC) S = área do bocal (m2 ) g = aceleração da gravidade (m/s2 ) H = pressão dinâmica mínima na boca do requinte (mca) Fazendo a substituição dos valores conhecidos, chega-se à fórmula: Hd2046,0Q x2x= Onde: Q = vazão (l/min) H = pressão dinâmica mínima (mca) d = diâmetro do requinte (mm) A perda de carga unitária (J) é calculada pela fórmula de Hazen Williams: Onde: J = perda de carga unitária (m/m) DC Q641,10 J 87,4x85,1 85,1 x = Q = vazão (m3 /seg) C = coeficiente de rugosidade - na tubulação C = 120 (ART 68 NCBSC) na mangueira C = 140 (ART 68 NCBSC) D = Diâmetro da tubulação ou mangueira ( m) Aplicando estas condições no exemplo proposto, teremos: Diâmentro da coluna de incêndio = 63mm (mínima admissível - ART 48) Diâmetro da mangeuira = 38 mm Diâmetro do esguicho = 13 mm Hidrantes por pavimento = 1 (com 30m de mangueira atinge-se todos os pontos). 15
  • 16.
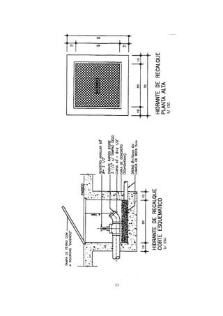
    Teremos então oseguinte: Em planta: Em corte: CÁLCULO DA VAZÃO NO HIDRANTE MAIS DESFAVORÁVEL: HAd2046,0Q x2x A = Sendo: HA = 4mca d = 13mm min/l15,694132046,0Q x2x A == 16
  • 17.
    CÁLCULO DA PRESSÃONO PONTO A ( PA) PA = HA + ∆h + ∆hman tub ∆hman = perda de carga na mangueira ∆htub = perda de carga no tubo 0,5 m Registro angular com redução Coluna Tê com saída lateral redução Perda de carga no tubo: Dados: D = 63mm QA = 0,0011525m3 /s l = 0,5m Cálculo da perda de carga unitária no tubo: m m 87,4 x85,1 85,1 x 87,4x85,1 A 85,1 x tub 0039,0J 063,0120 0011525,0641,10 DC Q641, J tub ==== 10 Comprimentos equivalentes: Tê de 63mm saída alteral = 3,43 Registro angular = 10,00 Redução = 0,60 14,03 Comprimento total = 14,03 + 0,5 = 14,53m Perda de carga no tubo ∆htub = 14,53 x 0,0039 = 0,056m Perda de carga na mangueira: Dados: D = 38mm QA = 0,0011525m3 /s C = 140 l = 30m Perda de carga unitária na mangueira: Perda de carga na mangueira: m m 87,4 x85,1 85,1 x 87,4x85,1 A 85,1 x man 0344,0J 038,0140 0011525,0641,10 DC Q641,10 J man ==== ∆hman = 30 x 0,0344 = 1,032 m PA = 4,0 + 1,032 + 0,056 = 5,088m 17
  • 18.
    CÁLCULO DA PRESSÃONO PONTO B (PB): Supondo que QB seja maior que QA, vamos adotar QB = 85 l/min = 0,00141 m3 /s mca04,6 60,1195 7225 132046,0 85 d2046,0 QB HB 4x2 2 4x2 2 ==== Jman = 9399,38 x 0,001411,85 x 30 = 1,5mca Jtub = 1065,88 x 0,001411,85 x 14,53 = 0,82mca PB = 6,04 + 1,5 + 0,082 = 7,62mca CÁLCULO DA PRESSÃO NO PONTO C (PC): Supondo que QC seja maior que QB, vamos adotar QC = 100 l/min = 0,00166 m3 /s mca36,8 60,1195 10000 132046,0 100 d2046,0 QC HC 4x2 2 4x2 2 ==== Jman = 9399,38 x 0,001661,85 x 30 = 2,03mca Jtub = 1065,88 x 0,001661,85 x 14,53 = 0,11mca PC = 8,36 + 2,03 + 0,11 = 10,50mca CÁLCULO DA PRESSÃO NO PONTO D (PD): Supondo que QD seja maior que QC, vamos adotar QD = 115 l/min = 0,00192m3 /s mca06,11 60,1195 13225 132046,0 115 d2046,0 QD HD 4x2 2 4x2 2 ==== Jman = 9399,38 x 0,001921,85 x 30 = 2,66mca Jtub = 1065,88 x 0,001921,85 x 14,53 = 0,15mca PD = 11,06 + 2,66 + 0,15 = 13,87mca RECÁLCULO DA PRESSÃO NO PONTO C PELA COLUNA: QD = 115 l/min = 0,00192m3 /s Comprimento do tubo = 4m Comprimento equivalente: Tê passagem direta = 0,41 Comprimento total = 4,41 Jtub = 1065,88 x 0,001921,85 x 4,41 = 0,044mca PC = 13,87 - 4 +0,044 = 9,91mca Como 9,91< 10,50, precisamos aumentar PD, logo QD deve ser maior que a adotada. Cálculo da PD, supondo que QD = 118 l/min = 0,00196m3 /s. mca64,11 60,1195 118 HD 2 == Jman = 9399,38 x 0,001961,85 x 30 = 2,76mca Jtub = 1065,88 x 0,001961,85 x 14,53 = 0,15mca PD = 11,64 + 2,76 + 0,15 = 14,55mca 18
  • 19.
    RECALCULO DA PRESSÃONO PONTO C PELA COLUNA: Jtub = 1065,88 x 0,001961,85 x 4,41 = 0,05mca PC = 14,55 - 4 + 0,05 = 10,6mca RECÁLCULO DA PRESSÃO NO PONTO B: D = 63 mm QC = 100 l/min = 0,00166 m3 /s Jtub = 1065,88 x 0,001661,85 x 3,41 = 0,026mca PB = 10,6 - 3 + 0,026 = 7,72mca Como 7,72 = 7,72 não é preciso modificar QC. RECÁLCULO DA PRESSÃO NO PONTO A PELA COLUNA: D = 63mm QB = 85 l/min = 0,00141 m3 /s Jtub = 1065,88 x 0,001411,85 x 3,41 = 0,02mca PA = 7,62 - 3 + 0,02 = 4,64mca Como 4,64 < 5,088, logo QB deverá ser maior. Cálculo do PB, supondo que QB = 87 l/min = 0,0014m3 /s. mca33,6 60,1195 87 HB 2 == Jman = 9399,38 x 0,00141,85 x 30 = 1,48mca Jtub = 1065,88 x 0,00141,85 x 14,53 = 0,08mca PB = 6,33 + 1,48 + 0,08 = 7,89mca RECÁLCLO DA PRESSÃO NO PONTO A PELA COLUNA: Jtub = 1065,88 x 0,00141,85 x 3,41 = 0,02mca PA = 7,89 - 3 + 0,02 = 4,91mca. CÁLCULO DA RESERVA TÉCNICA DE INCÊNDIO - RTI RTI = 30min x QD = 30 x 118 = 3540litros Como 3540 < 5000, adotamos RTI = 5000litros, que é o mínimo necessário. RTI = 5000litros CÁLCULO DA ALTURA, (X), DO RESERVATÓRIOS SUPERIOR Dados: D = 63mm Comprimentos equivalentes: Entrada normal = 0,9m Registro de gaveta = 0,4m Joelho = 2,35m Tê saída lateral = 3,43m Válvula de retenção = 8,1m Joelho = 2,35m Joelho = 2,35m Total = 19,88m Comprimento total = X + 19 + 1 + 1 + 19,88 = X + 40,88 19
  • 20.
    PA = X- ∆HAR ∆HAR = perda de carga entre os pontos A e R. 0039,0 063,0120 00115,0641,10 DC Q641,10 J 87,4 x85,1 85,1 x 87,4x85,1 85,1 A x AR === JAR = 0,0039m/m ∆HAR = JAR ( X + 40,88 ) ∆HAR = 0,0039X + 0,0039 x 40,88 ∆HAR = 0,0039X + 0,16 PA = X - (0,0039X + 0,16) 5,088 = 0,9961X - 0,16 0,9961X = 5,248 X = 5,27m QUESTÃO PROPOSTA: Refazer os cálculos hidráulicos, supondo que a edificação proposta tivesse risco de incêndio MÉDIO. Para refazer estes cálculos teríamos que introduzir as seguintes modificações na solução anterior: a) Para calcular QA, teríamos que usar HA = 15mca e o diâmetro do esguicho = 25mm. b) Calcularíamos PB, PC e faríamos o recálculo pela coluna, com as devidas correções de QB e QC. ( não seria necesário calcular PD e QD). c) A reserva técnica de incêndio seria: RTI = QA + QB x 30min ( considerando 2 hidrantes em uso simultâneo) d) No cálculo de X teríamos que usar Q = QA + QB, então: ( ) DC QQ641,10 J 87,4x85,1 BA 85,1 x AR + = 20
  • 21.
    Para determinação daaltura do reservatório, pode-se utilizar um método simplificado, conforme mostra o exemplo: Exemplo: Calcular a altura do reservatório superior, supondo 3 hidrantes em uso simultâneo, com três alternativas: tubo com diâmetro de 63mm, 75mm e 100mm. CALCULO DA VAZÃO NO HIDRANTE MAIS DESFAVORÁVEL: (IDÊNTICO AO EXEMPLO ANTERIOR) HAd2046,0Q x2x A = Sendo: HA = 4mca d = 13mm min/l15,694132046,0Q x2x A == 21
  • 22.
    CÁLCULO DA PRESSÃONO PONTO A ( PA) PA = HA + ∆hman + ∆htub ∆htub = 14,53 x 0,0039 = 0,056m ∆hman = 30 x 0,0344 = 1,032 m PA = 4,0 + 1,032 + 0,056 = 5,088m A simplificação consiste em calcular a vazão dos demais hidrantes usando a pressão estática no lugar da pressão dinâmica. Isto dará vazões maiores, portanto a favor da segurança. Teremos então: QB = 91,5 l/min = 0,00152 m3 /s 34132046,0Q x2x B += QC = 109,34 l/min = 0,0018m3 /s 334132046,0Q x2x C ++= QTOTAL = QA + QB + QC = 69,15 + 91,5 + 109,34 = 269,99 l/min = 0,0045m3 /s Comprimentos equivalentes no trecho A-R Peça 63mm 75mm 100mm Entrada normal 0,9 1,1 1,6 Registro de gaveta 0,4 0,5 0,7 Joelho 2,35 2.82 3,76 Tê saída lateral 3,43 4,11 5,49 Válvula de retenção 8,1 9,7 12.9 Joelho 2,35 4,11 5,49 Joelho 2,35 4,11 5,49 Redução 75 x 63 ****** 0,9 0,9 Redução 100 x 75 ****** ****** 1,1 TOTAL 19,88 27,35 37,84 Comprimento Total 40,88 48,35 58,84 CÁLCULO DA PERDA DE CARGA UNITÁRIA NO TRECHO A-R tabelaver D120 0045,0641,10 DC Q641,10 J 87,4x85,1 85,1 x 67,4x85,1 85,1 total x AR === D (m) JA-R (m/m) 0,63 0,48 0,075 0,021 0,10 0,005 22
  • 23.
    CÁLCULO DE XPARA D = 63mm PA = X - ∆hA-R ∆hA-R = JAR x (X + 40,88) PA = X - (0,048X + 0,048 x 40,88) 5,08 = X - 0,048X - 1,96 X = 7,04 / 0,952 X = 7,39m CÁLCULO DE X PARA D = 75mm PA = X - ∆hA-R ∆hA-R = JAR x (X + 48,35) PA = X - (0,021X + 0,021 x 48,35) 5,08 = X - 0,021X - 1,01 X = 6,09 / 0,979 X = 6,22m CÁLCULO DE X PARA D = 100mm PA = X - ∆hA-R ∆hA-R = JAR x (X + 58,84) PA = X - (0,005X + 0,005 x 58,84) 5,08 = X - 0,005X - 0,29 X = 5,37 / 0,995 X = 5,39m BIBLIOGRAFIA MACINTYRE, Archibald Joseph. Manual de instalações hidráulicas e sanitárias. Ed. Guanabara. 1990. CREDER, hélio. Instalações hidráulicas e sanitárias. Ed. Livros Técnicos e Científicos. 1990. BORGES, Ruth Silveira e Wellington Luiz. Manual de instalações prediais hidráulico- sanitárias e de gás. Ed. Pini. 1992. 4. ed. Normas de segurança contra incêndios do CBSC (Corpo de Bombeiros de Santa Catarina) Decreto n° 4909 de 18 - 10 - 94, publicado no Diário Oficial n° 15042 de 19 - 10 - 94. NBR 13714 Instalações hidráulicas contra incêndio, sob comando, por hidrantes e mangotinhos. 1996 da ABNT. 23
  • 24.
    A N EX O S 24
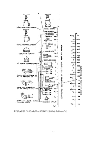
  • 25.
    PERDAS DE CARGALOCALIZADAS ( Gráfico da Grane Co.) 25
  • 26.
    26 conexões de ferromaleável classe 10 Perdas de carga localizadas: comprimentos equivalentes em metros de canalização de aço galvanizado,
  • 27.
    Comprimentos equivalentes emmetros para bocais e válvulas 27
  • 28.
    Perdas de cargalocalizadas: comprimentos equivalentes em metros de canalização de PVC rígido ou cobre. 28
  • 29.
  • 31.
  • 33.
  • 34.