1
2
3
FIAMFAAM – CENTRO UNIVERSITÁRIO
KATIA NUNES BRAZ
CENTRO CULTURAL MAUÁ
SÃO PAULO
2023
4
5
KATIA NUNES BRAZ
CENTRO CULTURAL MAUÁ
Trabalho Final de Graduação apresentado
à banca examinadora do FIAM-FAAM
Centro Universitário como requisito parcial
a obtenção do título de Bacharel em
Arquitetura e Urbanismo.
Orientador: Felipe de Lima Gonzaga
SÃO PAULO
2023
6
AUTORIZO A REPRODUÇÃO E DIVULGAÇÃO TOTAL OU PARCIAL DESTE
TRABALHO, POR QUALQUER MEIO CONVENCIONAL OU ELETRÔNICO, PARA
FINS DE ESTUDO E PESQUISA, DESDE QUE CITADA A FONTE.
Braz, Katia
Centro Cultural Mauá / Katia Nunes Braz.
São Paulo. FIAMFAAM – Centro Universitário, 2023. 64 Páginas
Orientador: Felipe de Lima Gonzaga.
Monografia (Trabalho Final de Graduação) | FIAMFAAM – Centro Universitário.
Curso de Arquitetura e Urbanismo. São Paulo, 2023.
1. Centro Cultural;
2. Mauá;
3. Espaços públicos.
I Sobrenome Orientador, Nome Orientador;
II. FIAMFAAM – Centro Universitário;
III Curso de Arquitetura e Urbanismo.
7
KATIA NUNES BRAZ
CENTRO CULTURAL MAUÁ
Trabalho Final de Graduação apresentado
à Banca Examinadora do FIAM-FAAM
Centro Universitário como requisito parcial
a obtenção do título de Bacharel, em
Arquitetura e Urbanismo.
Data de aprovação:
____/____/________.
Banca examinadora:
______________________
Prof.: Felipe de Lima Gonzaga
FIAMFAAM – Orientador
______________________
Prof.: Aline da silva Escórcio Ribeiro
Professor(a) Convidado(a) Interno(a)
______________________
Prof.: Domênica Maria da Silva
Professor(a) Convidado(a) Externo(a)
SÃO PAULO
2023
8
9
“Uma tomada de consciência coletiva é necessária, qualquer
divagação é um delito na hora atual, a “desculturação” está
em curso. Se o economista e o sociólogo podem diagnosticar
com desprendimento, o artista deve agir, como parte ligada
ao povo ativo, além de ligada ao intelectual.”
(Lina Bo Bardi)
10
11
SUMÁRIO
INTRODUÇÃO...........................................................................................11
1 1.1 CONTEXTUALIZAÇÃO: CENTRO CULTURAL MAUÁ.................15
1.2 ANÁLISE URBANA……………………….....................................…17
1.2.1 REGIÃO ……………….…..….……..............……......…...17
1.2.2 BAIRRO…....…………….................................................19
1.2.3 ENTORNO IMEDIATO …………...........................…......20
1.3 ANÁLISE DO TERRENO ……………....……....................….…................24
2 O PROJETO………..…….……………..…………........….......…….…...29
2.1 PARTIDO ARQUITETÔNICO.......................................................31
2.2 FORMA E FUNÇÃO……………..................................................35
2.2.1 ESTUDOS DE CASO.....................................................35
2.2.2 PROGRAMA.................................................................41
2.3 CARACTERÍSTICAS CONSTRUTIVAS: MATERIAIS E ESTRUTURA.............45
2.4 PEÇAS GRÁFICAS...............................................................................48
REFERÊNCIAS..............................................................................................61
12
13
LISTA DE FIGURAS
Figura 1. Contexto Mauá......................................................................................15
Figura 2. Equipamentos por município..................................................................15
Figura 3. Nuvem de Palavras................................................................................16
Figura 4. Gráfico comparativo de equipamento culturais no Grande ABC...............16
Figura 5. Estrada de ferroa Santos a Jundiaí..........................................................17
Figura 6. Bairro Cerqueira Leite.............................................................................19
Figura 7. Fábrica Cerâmica Cerqueira Leite...........................................................19
Figura 8. Peças de porcelana da Fábrica de Cerâmica Cerqueira Leite....................19
Figura 9. Mapa de uso do Solo e gabarito.............................................................21
Figura 10. Equipamentos......................................................................................22
Figura 11. Hierarquia viária e transporte. .............................................................22
Figura 12. Topografia...........................................................................................23
Figura 13. Tabela de índices urbanístico................................................................24
Figura 14. Mapa de Zoneamento..........................................................................25
Figura 15. Estudo solar Solstício de inverno no período da manhã e à tarde............26
Figura 16. Estudo solar Solstício de verão no período da manhã e à tarde..............26
Figura 17. The Whitney Museum...........................................................................29
Figura 18. Pinacoteca de São Paulo......................................................................30
Figura 19. Diagramas de partido 1......................................................................31
Figura 20. Diagramas de partido 2......................................................................32
Figura 21. Conjunto de peças de porcelana da fábrica Cerqueira Leite..................33
Figura 22. Edifício Hexalace.................................................................................33
Figura 23. Detalhe brise fachada.........................................................................34
Figura 24. Fachada principal Centro Cultural Mauá.............................................34
Figura 25. Hayy Jameel Cultural Center...............................................................35
14
Figura 26. Tabela de programa do Centro Cultura Hayy jameel.............................36
Figura 27. Plantas do Centro Cultura Hayy Jameel Cultural Center........................37
Figura 28. Nuevo Centro Cultural........................................................................38
Figura 29. Corte Nuevo Centro Cultural...............................................................38
Figura 30. Tabela do programa do Nuevo Centro Cultural....................................39
Figura 31. Plantas Nuevo Centro Cultural.............................................................40
Figura 32. Tabela de índices urbanísticos com dados do projeto............................41
Figura 33. Diagrama setorizado Centro Cultural Mauá.........................................42
Figura 34. Tabela do programa Centro Cultural Mauá.........................................43
Figura 35. Gráfico comparativo...........................................................................44
Figura 36. Spider Glass – Fixação vidros..............................................................45
Figura 37. Diagrama estrutural............................................................................46
Figura 38. Brise metálico fachada principal...........................................................47
Figura 39. Referências brises................................................................................47
Figura 40. Pav. Térreo Centro Cultural Mauá........................................................48
Figura 41. Subsolo Centro Cultural Mauá..............................................................49
Figura 42. Pav. 1 e 2 Centro Cultural Mauá...........................................................50
Figura 43. Pav. 3 e Centro Cultural Mauá............................................................51
Figura 44. Pav. 5 e 6 Centro Cultural Mauá...........................................................52
Figura 45. Pav. 7 e 8 Centro Cultural Mauá...........................................................53
Figura 46. Planta de Cobertura Centro Cultural Mauá............................................54
Figura 47. Corte AA e Corte BB.............................................................................55
Figura 48. Corte ampliado....................................................................................56
Figura 49. Fachada 1 e 2......................................................................................57
Figura 50. Fachada 2 e 3.....................................................................................58
Figura 51. Fachada principal..............................................................................59
Figura 52. Fachada principal..............................................................................60
15
16
LISTA DE ABREVIATURAS
SSU – Secretária de Serviços Urbanos
TO. – Taxa de Ocupação
CA. – Coeficiente de aproveitamento
IBGE - Instituto Brasileiro de Geografia e Estatística
SESI - Serviço Social da Indústria
17
18
19
10
11
INTRODUÇÃO
Esse Trabalho de Finalização de Curso faz parte do projeto apresentado a disciplina
TFG II do curso de Arquitetura e Urbanismo da FIAMFAAM Centro Universitário. O
objetivo é fundamentar os conceitos quem embasaram as decisões projetuais
elaborados para a proposta do Centro Cultura Mauá localizada no bairro Jardim
Cerqueira Leite na cidade de Mauá.
Esse caderno está estruturado em dois capítulos, o primeiro capítulo trata da
contextualização do tema centro cultural utilizando como base a pesquisa realizada
pelo Consórcio Intermunicipal Grande ABC; a seguir é apresentada a análise urbana
que leva em conta a escala regional que busca estabelecer as relações da área com o
restante da cidade sob os aspectos de transporte, mobilidade, socioeconômico, etc.;
do bairro Cerqueira Leite com uma introdução na história da cidade de Mauá e em
como a indústria da Cerâmica influenciou o crescimento econômico e populacional
na região.
O segundo capítulo é subdividido em quatro partes. Em primeiro momento é exposto
o partido arquitetônico adotado como solução projetual; a seguir nas partes dois e
três, respectivamente, são apresentados os estudos de caso que serviram de base
para criação do programa de necessidades, assim como o programa propriamente
dito; além dos materiais e o sistema estrutural definidos para a proposta. Por fim será
apresentado as peças gráficas que ilustram o projeto arquitetônico do Centro Cultural
Mauá.
12
13
14
15
1.1 CONTEXTUALIZAÇÃO: CENTRO CULTURAL MAUÁ
O Centro Cultural Mauá é um projeto que visa oferecer à população de Mauá e da
Região do Grande ABC um espaço de referência para a realização de atividades
culturais, está localizado no Bairro Cerqueira Leite, uma área que carece de
equipamentos culturais e que pode se beneficiar da presença de um edifício que
promova a integração e a participação da comunidade. O Centro Cultural Mauá
pretende ser um ponto de encontro para as pessoas que buscam cultura, lazer,
educação e cidadania em um único lugar.
A escolha do local do Centro Cultural Mauá foi baseada em uma análise
comparativa com as outras cidades do Grande ABC conforme a figura 2, que
mostrou que Mauá possui uma deficiência de equipamentos culturais em relação às
demais. Segundo a pesquisa “Cultura no Grande ABC”, realizada pelo Consórcio
Intermunicipal Grande ABC, a maioria dos equipamentos culturais que a população
tem interesse em visitar estão na cidade de São Paulo, que é vista como uma
referência nesse aspecto, isso é demonstrado na figura 3.
Figura 1. Contexto Mauá
Fonte: Geosampa
Figura 2. Equipamentos por município
Fonte: IBGE
16
Além disso, o gráfico abaixo ilustra que o SESC Santo André e o Teatro Lauro Gomes
de São Bernardo do Campo são os equipamentos culturais mais frequentados do
Grande ABC, enquanto o Museu Barão de Mauá, em Mauá, recebe poucos visitantes.
Isso indica que os equipamentos culturais de Mauá não são tão atrativos ou
diversificados para atender às demandas da população.
Portanto, o Centro Cultural Mauá surge como uma proposta de valorização da
cultura local e regional, que pode estimular a interação e a comunicação entre as
pessoas e a sociedade. O Centro Cultural Mauá também pode ser um parceiro das
escolas, oferecendo atividades culturais que favoreçam o desempenho escolar, o
aprendizado de novas habilidades e conhecimentos, e a formação profissional dos
estudantes. O Centro Cultural Mauá é um projeto que visa contribuir para o
desenvolvimento cultural, social e econômico de Mauá e do Grande ABC.
Figura 3. Nuvem de palavras
Fonte: Consórcio Abc
Figura 4. Gráfico comparativo de equipamento culturais no Grande ABC
Fonte: Consórcio Abc
17
1.2 ANÁLISE URBANA
1.2.1 REGIÃO
Mauá é uma cidade com um passado rico e diverso, que se destaca pela sua
importância industrial e pela sua posição geográfica. A cidade surgiu em 1954,
quando se emancipou de Santo André, e foi batizada de Mauá em homenagem ao
Barão de Mauá, um dos precursores da industrialização no Brasil. A estação Pilar
(hoje Mauá), inaugurada em 1883, fazia parte da ferrovia que ligava a capital ao
porto de Santos. Isso atraiu várias indústrias de cerâmica e porcelana, que
aproveitavam o solo rico em argila branca da região. Essas indústrias foram
fundamentais para a economia da cidade, que ficou conhecida como "cidade
porcelana".
Figura 5. Estrada de ferro Santos a Jundiaí
Fonte: Centro-Oeste
18
Hoje, Mauá tem 61 km² de área, sendo cerca de 13 km² em área de proteção de
mananciais (PREFEITURA DE MAUÁ, 2023). Sua população é de 418.261 habitantes
(IBGE,2022), o que a coloca como a terceira mais populosa do Grande ABC, atrás
apenas de São Bernardo do Campo e Santo André. A cidade também se destaca por
suas duas zonas de desenvolvimento econômico, o Polo Industrial de Sertãozinho e o
Polo Petroquímico de Capuava, (PREFEITURA DE MAUÁ, 2023).
No que se refere ao transporte, a cidade conta com as estações Mauá, Capuava e
Guapituba da CPTM da linha 10 turquesa, além do Terminal Municipal de ônibus
próximo à estação Mauá. A cidade também é servida pelas linhas intermunicipais do
corredor ABCD da empresa Next Mobilidade, que ligam o Grande ABC à capital
paulista.
19
1.2.2 BAIRRO
Uma das características históricas da cidade de Mauá é a sua tradição na produção
de cerâmica e porcelanas, que remonta à década de 30. Uma das fábricas mais
famosas dessa época era a Indústria De Cerâmica Cerqueira Leite, que se destacava
pela qualidade e variedade das peças de louça que fabricava. No entanto, a fábrica
não resistiu à concorrência e à crise econômica e encerrou as suas atividades na
década de 70. O terreno onde a fábrica funcionava foi desapropriado pela prefeitura
e transformado em um complexo de serviços públicos, que inclui o Poupatempo
Mauá, a sede da BRK e o pátio e estacionamento da SSU.
Figura 6. Bairro Cerqueira Leite
Fonte: Prefeitura De Mauá
Figura 7. Fábrica Cerâmica Cerqueira Leite
Fonte: Porcelana Brasil
Figura 8. Peças de porcelana da Fábrica de Cerâmica Cerqueira Leite
Fonte: Porcelana Brasil
20
1.2.3 ENTORNO IMEDIATO
A figura 9 apresentar o uso do solo diversificado com a predominâncias de comércio
e serviços na Avenida Barão de Mauá onde o terreno está localizado.
Do mesmo modo, o mapa demonstra a variação de gabarito predominante entre 6m
e 9m. Diante disso o projeto se propõe a quebrar a relação com os gabaritos
existentes devido aos índices urbanísticos que serão apresentados no próximo
capítulo.
Nas proximidades do terreno, há equipamentos públicos e privados, como o
Poupatempo de Mauá, a escola SESI, o Museu Barão de Mauá, conforme indicado na
figura 10. Além disso, o pátio da SSU é utilizado para a realização de uma feira livre
aos sábados.
A implantação do Centro Cultural próximo ao SESI pode atrair e beneficiar os
estudantes da escola e a comunidade em geral. Além disso, as áreas de convívio
podem ser utilizadas pelos usuários que frequentam a feira livre, criando um
ambiente de interação e lazer.
No que se refere ao transporte, a figura 11 apresenta os pontos de ônibus mais
próximos do terreno, que estão a menos de 300m de distância e oferecem acesso a
18 linhas municipais e 2 linhas intermunicipais.
O terreno é acessado pela Avenida Barão de Mauá, que é uma via coletora que liga
os principais bairros da cidade, porém com sentido único, esse ponto será
fundamental para embasar as diretrizes projetuais ao acesso ao terreno.
A figura 12 mostra a topografia da região, que é marcada por declives acentuados
em Mauá, mas que apresenta um relevo mais suave no entorno do terreno, por estar
próxima ao Rio Tamanduateí.
21
A situação topográfica dentro do terreno apresenta um desafio para o acesso ao lote
de forma adequada, pois há uma diferença de 4m em relação a rua. Portanto trata-
se de um fator primordial para estabelecer o acesso de pedestres.
Figura 9. Mapa de uso do Solo e gabarito
Fonte: Webgis
22
Figura 10. Equipamentos
Fonte: Webgis
Figura 11. Hierarquia viária e transporte
Fonte: Webgis
23
Figura 12. Topografia
Fonte: Webgis
24
1.3 ANÁLISE DO TERRENO
O terreno de implantação do Centro Cultura Mauá é um conjunto de loteamentos
existentes que ao todo possui 4.370,75 m², localizado em uma ZUD 1 – Zona de Uso
Diversificado como indicado na figura 14.
Conforme descrito na Lei 4.153 (PLANO DIRETOR MAUÁ, 2007)
destinam-se à localização de estabelecimentos comerciais e industriais, cujo processo
produtivo seja complementar das atividades do meio urbano em que se situem e que com eles
se compatibilizem, independente do uso de métodos especiais de controle de poluição, não
ocasionando, em nenhum caso, inconvenientes à saúde, ao bem-estar e à segurança da
população vizinha.
Os índices urbanísticos estão dispostos na figura 13 com dados extraídos da Lei
4.968 de Uso e Ocupação do Solo.
Endereço:
Tema:
Zoneamento:
Área do Terreno (m²):
Lotes
901 - 599 m²
066 - 235,66 m²
900 - 661,79 m²
007 - 2874,3 m²
índice
Mínimo 0,2
Básico 2,5
Máximo 5
0,7
0,15
Recuo de fundos e laterais: 3
Taxa de Ocupação (TO):
Dimensão disponível (m)
21854
Coeficiente de Aproveitamento (CA):
Taxa de Permeabilidade:
3060
656
N/A
Gabarito máximo:
Recuo de frente: 5
874
10927
Centro Cultural
área conforme legislação (m²)
ZUD 1 – Zona de Uso Diversificado
PARÂMETROS DE OCUPAÇÃO
4370,75
Área disponível
DADOS DO PROJETO
Av. Barão de Mauá, 1199 - Mauá - SP
Figura 13. Tabela de índices urbanístico com dados retirados da Lei 4.968 de Uso e
Ocupação do Solo
Fonte: Plano Diretor Mauá
25
O estudo solar apresentado nas figuras 15 e 16 indica um leve sombreamento do
edifício na lateral esquerda, além disso, a fachada principal do terreno receberá
menos luz durante o dia devido ao posicionamento do terreno em relação ao norte
esse aspecto será relevante para definir a implantação do terreno.
No entanto, como já foi dito no capítulo anterior, o edifício vai romper a relação com
o padrão existente que, devido aos índices urbanos, resulta em um edifício de até
21.854 m² por causa do CA. máximo (5), impondo uma verticalização inescapável
que causará um sombreamento do Centro Cultural Mauá em seu entorno.
.
Figura 14. Mapa de Zoneamento
Fonte: Webgis
26
Diante dos tópicos mencionados, nota-se que a cidade Mauá possui uma carência de
equipamentos públicos atrativos para a população, o projeto arquitetônico deve considerar os
desafios que o terreno apresenta diante da verticalização inevitável devido aos indicies
urbanístico exigidos pela legislação, deve buscar uma integração harmoniosa com o entorno,
utilizando elementos que amenizem o impacto visual.
Do mesmo modo, deve garantir a acessibilidade e conexão do lote com a calçada diante do
desnível de 4m em relação a rua, além disso, como o acesso de veículos é limitado será
preciso posicionar estrategicamente para que não interfira no fluxo de pedestre.
Por fim, o projeto deve aproveitar a orientação solar favorável do terreno para obter uma
iluminação natural equilibrada.
Figura 15. Estudo solar Solstício de inverno no período da manhã e à tarde.
Arquivo produzido por Katia Braz
Figura 16. Estudo solar Solstício de verão no período da manhã e à tarde.
Arquivo produzido por Katia Braz
27
28
29
2. O PROJETO
2.1 PARTIDO ARQUITETÔNICO
O partido do projeto tem a intenção de suavizar o peso visual do volume em relação
ao seu entorno com gabarito predominante de até três pavimentos, porém devido ao
potencial construtivo considerado o edifício é verticalizado.
Para isso, o projeto propõe algumas estratégias arquitetônicas, como a ocupação
parcial do térreo, que cria um espaço público de convivência e lazer, os pavimentos
tipo, que apresentam diferentes dimensões e recortes, criando um volume dinâmico e
permeável, que se afasta da forma pura inicial, e o terraço, que privilegia a vista da
rua para a circulação vertical.
O terraço no quinto pavimento, que foi inspirado na circulação externa do The
Whitney Museum, obra do arquiteto Renzo Piano. A ideia é que as escadas que levam
ao terraço descoberto sejam visíveis da rua, criando um efeito dinâmico e
convidativo.
Figura 17. The Whitney Museum
Fonte: Archdaily
30
Essa circulação possui um fechamento e cobertura de vidro para proteger o terraço
da chuva e possibilitando seu uso em qualquer clima, além disso o projeto propôs um
piso que atravessa o espaço do terraço apenas parcialmente, permitindo a circulação
dos visitantes em cada pavimento e a visualização dos andares inferiores. Essa
solução se inspirou na passarela interna com cobertura de vidro da Pinacoteca de
São Paulo, projeto do arquiteto Paulo Mendes da Rocha.
Outro recurso utilizado é a faixa de descompressão entre os pavimentos um e três,
que ajuda a diminuir o peso visual do edifício e a proporcionar áreas livres para os
usuários.
O acesso de veículos é feito pela lateral esquerda do lote, minimizando os conflitos
com os pedestres no nível da calçada. O acesso de pedestres é feito por uma escada
externa e um piso inclinado 4,99% que supera o desnível de 2m após a planificação
do terreno na cota 769.
Figura 18. Pinacoteca de São Paulo
Fonte: Archdaily
31
Figura 19. Diagramas de partido.
Arquivo produzido por Katia Braz
32
Figura 20. Diagramas de partido.
Arquivo produzido por Katia Braz
33
Por fim, a fachada do Centro Cultural Mauá foi concebida a partir do projeto do
edifício Comercial Hexalace, que se destaca pela geometria hexagonal e pela
transparência. O objetivo foi criar uma fachada que se harmonizasse com o entorno
e que remetesse à história da cidade e do bairro, diante disso foi elaborado elemento
geométrico com conjuntos de decágonos que remete à forma das peças de porcelana
apresentadas na figura 18, criando um diálogo entre o passado e o presente. O
elemento também confere dinamismo e modernidade à composição, contrastando
com as linhas retas e simples do restante da construção.
Figura 21. Conjunto de peças de porcelana da fábrica
Cerqueira Leite.
Fonte: Porcelana Brasil
Figura 22. Conjunto de peças de porcelana da fábrica
Cerqueira Leite.
Fonte: Ardete
34
Figura 23. Detalhe elemento de fachada.
Autoria Katia Braz
Figura 24. Fachada principal Centro Cultural Mauá.
Autoria Katia Braz
35
2. FORMA E FUNÇÃO
2.2.1 ESTUDOS DE CASO
Para idealização do Centro Cultural Mauá foi analisado dois estudos de casos com
área semelhantes ao projeto com o tema centro cultural, contudo durante a
elaboração do projeto houve alteração no limite do terreno causando um aumento
na metragem total do projeto, por conta disso os estudos de caso têm a metragem
diferentes. Foi escolhido o Centro Cultural Hayy jameel do escritório Waiwai e o
Nuevo Centro Cultural do escritório FÜNDC.
Hayy Jameel Cultural Center é
um complexo de uso misto
para as artes em Jeddah,
Arábia Saudita, que incentiva a
interação entre as mais amplas
disciplinas criativas: arte,
música, cinema e arquitetura.
Projetado pelo estúdio de
arquitetura Waiwai e concluído
em 2021 com 16.000 m². O complexo tem galerias de arte, escritórios, estúdios de
artistas, cinema e teatro, restaurante e muito mais, incluindo um espaçoso pátio
paisagístico com vegetação local.
O projeto é concebido como um hub dinâmico e criativo para a comunidade. O pátio
central é o elemento principal da arquitetura e do programa, conectando todos os
níveis do projeto e criando espaços compartilhados e animados. O pátio também é
cercado por terraços sombreados e escalonados que servem como extensões do
pátio.
A fachada exterior é projetada para o clima e a cultura do Oriente Médio, recebendo
luz natural nos espaços interiores e maximizando as transparências onde possível, ao
mesmo tempo em que mantém a privacidade dos edifícios vizinhos. A fachada
principal é concebida como uma ‘tela em branco’ para comissionar obras públicas de
artistas e designers emergentes e estabelecidos.
Figura 25. Centro Cultura Hayy jameel.
Fonte: Archdaily
36
O estudo de caso selecionado apresenta uma variedade de atividades culturais em
seu programa e uma distribuição espacial que explora os pátios e os níveis do
edifício. Embora alguns espaços não sejam adequados para o projeto do Centro
Cultural Mauá, esse estudo de caso serviu como referência principal para o programa
de necessidades.
SETOR AMBIENTE
IDENTIFICAÇÃO NA
PLANTA
AMBIENTES
SEPARADOS
M² QTD TOTAL M²
TOTAL M² POR
SETOR
% SEM ESTACIONAMENTO
% COM
ESTACIONAMENTO
CLUBE DE COMÉDIA E ESPAÇO PARA
APRESENTAÇÃO
1
CLUBE DE COMÉDIA E
ESPAÇO PARA
APRESENTAÇÃO
382,28 1 382,28
2 SALA 1 195
3 SALA 2 265,43
4 SALA 3 341,98
5 SALA 4 465,36
6 SALA 5 270,1
7 SALA 6 144,81
8 SALA 7 140
9 SALA 8 155
10 SALA 9 229,02
11 SALA 10 100
12 SALÃO 1 195
13 SALÃO 2 265
CINEMA 14 CINEMA 550 1 550
15
ESPAÇO
EMPREENDEDOR 1
316,66
16
ESPAÇO
EMPREENDEDOR 2
187,7
17
ESTÚDIO AUDIO
/VISUAL 1
200
18
ESTÚDIO AUDIO
/VISUAL 2
140
19
ESTÚDIO AUDIO
/VISUAL 3
17,00
20 ESTÚDIO ARTISTICO 1 60
21 ESTÚDIO ARTISTICO 2 60
22 ESTÚDIO ARTISTICO 3 60
23
ESTÚDIO DE
PRODUÇÃO
60 1
24 GINÁSIO 1 195
25 GINÁSIO 2 125
RESTAURANTE 26 RESTAURANTE 195 1 195
CAFÉ E BIBLIOTECA 27 CAFÉ E BIBLIOTECA 250 1 250
SALA DE ORAÇÃO 28 SALA DE ORAÇÃO 95 1 95
ESCRITÓRIOS 29 ESCRITÓRIOS 235 1 235
SALA DE SEGURANÇA 30 SALA DE SEGURANÇA 25 1 25
SALA DE REUNIÃO 31 SALA DE REUNIÃO 103,18 1 110
SALA ADM 32 SALA ADM 25 2 50
COZINHA 33 COZINHA 80,5 1 90
SALA DE APOIO 34 SALA DE APOIO 47,86 7 335
BANHEIROS 35 BANHEIROS 35 9 315
DEPÓSITO LIMPEZA 36 DEPÓSITO LIMPEZA 27,5 2 55
DEPÓSITO 37 DEPÓSITO 230 3 690
DESPENSA 38 DESPENSA 25 1 25
ALMOXARIFADO 39 ALMOXARIFADO 45 1 45
RECEBIMENTO 40 RECEBIMENTO 45 1 45
41 ESTACIONAMENTO 5016,36 1 5016,36 5016,36 - 31%
3303,3 1 3303,3 3303,3 30% 21%
16000
10983,64
* DEVIDO A PREDOMINÂNCIA DO ESTACIONAMENTO NA SETORIZAÇÃO DO ESTUDO DE CASO 2 REALIZEI O GRÁFICO DESCONSIDERANDO O ESTACIONAMENTO PARA COMPARAÇÃO ENTRE OS PROJETOS , PORÉM NA
TABELA HÁ UMA COLUNA COM A PORCENTAGEM INCLUINDO O ESTACIONAMENTO.
ADM
APOIO
ESTACIONAMENTO
CIRCULAÇÃO
TOTAL M² COM ESTACIONAMENTO
TOTAL % 100,0% 100,0%
TOTAL M² SEM ESTACIONAMENTO
3,82% 3,00%
1600 15% 10%
460
1101,36
320
860 7,82% 5,00%
420
10 2306,7
ESPAÇO MULTIUSO PARA EVENTOS 2
3
3
2
ESTUDO DE CASO 1 - Hayy Jameel Cultural Center / waiwai
FORMAÇÃO
CULTURAL
4800,34 44% 30%
2
ESPAÇO DE EXPOSITIVO
SALAS DE AULA
VIVÊNCIA
GINÁSIO
Figura 26. Tabela de programa do Centro Cultura Hayy jameel.
Autoria Katia Braz
37
Figura 27. Plantas do Centro Cultura Hayy Jameel com Setorização.
Fonte: Archdaily
38
O segundo estudo é o Nuevo
Centro Cultural. Realizado pelo
escritório FÜNDC em 2011 com
área de 10.231 m².
Localizado em Madri, Espanha, o
projeto faz parte de uma
intervenção urbana com mais de
20.000 m² construídos. Consiste na pedonalização da praça e ruas envolventes,
urbanizando-as com novos pavimentos ininterruptos, fontes e mega- plantadores em
torno de um novo centro cultural composto por arquitetura antiga e contemporânea
que trabalham em conjunto.
Sob estas áreas existe um parque de estacionamento subterrâneo de dois níveis que
inclui paragens de autocarro e túneis para o reencaminhamento do tráfego
rodoviário e consequente eliminação do mesmo à superfície. As salas conversíveis
permitem a mudança de uso da arquitetura cultural, que pode passar de uma
configuração expositiva a um auditório por meio da manipulação de plataformas
móveis.
Figura 28. Nuevo Centro Cultural.
Fonte: Archdaily
Figura 29. Corte Nuevo Centro Cultural.
Fonte: Archdaily
39
Em contraste com o projeto anterior, o Nuevo Centro Cultural tem um setor de
formação cultural menos diversificado, mas ocupa mais de 50% da sua área total.
Esse foi um dos critérios para a seleção do projeto, que prioriza as atividades culturais
e oferece espaços flexíveis para diferentes usos.
SETOR AMBIENTE
IDENTIFICAÇÃO NA
PLANTA
AMBIENTES
SEPARADOS
M² QTD TOTAL M²
TOTAL M² POR
SETOR
% SEM ESTACIONAMENTO
% COM
ESTACIONAMENTO
SALA a
SALA b
SALA c
SALA d
ENTRADA 31
2
SALA DE EXPOSIÇÕES
(TÉRREO)
139
3
SALA DE EXPOSIÇÕES
(2º PAV)
90
4
TERRAÇO DE
EXPOSIÇÕES
173
SALA DE AULA / AUDITÓRIO 5
SALA DE AULA /
AUDITÓRIO
98 1 98
OFICINAS 6 OFICINAS 33 3 33
VIVÊNCIA CAFETERIA 7 CAFETERIA 52 1 52 52 4,9% 0,5%
SALA 1 12,5
SALA 2 12,5
39 39
12 12
252 1 252 252 23,6% 2,4%
9125,0 1 9165 9165 - 89,6%
10243
1078
CIRCULAÇÃO
ESTACIONAMENTO
TOTAL M² COM ESTACIONAMENTO
TOTAL M² SEM ESTACIONAMENTO
* DEVIDO A PREDOMINÂNCIA DO ESTACIONAMENTO NA SETORIZAÇÃO DO ESTUDO DE CASO 2 REALIZEI O GRÁFICO DESCONSIDERANDO O ESTACIONAMENTO PARA COMPARAÇÃO ENTRE OS PROJETOS , PORÉM NA
TABELA HÁ UMA COLUNA COM A PORCENTAGEM INCLUINDO O ESTACIONAMENTO.
1
134
ESPAÇO DE EXPOSITIVO
ADM ESCRITÓRIOS 8
APOIO BANHEIROS 9 BANHEIROS
165
698
402
25 25
51
TOTAL %
65,5% 7,0%
2,3% 0,2%
3,7% 0,3%
100,0% 100,0%
4
3
2
6
ESTUDO DE CASO 2 - Nuevo Centro Cultural / FÜNDC
FORMAÇÃO
CULTURAL
SALA MULTIFUNCIONAL
Figura 30. Tabela do programa do Nuevo Centro Cultural.
40
MEZANINO
TÉRREO
Figura 31. Planta Nuevo Centro Cultural setorizada.
Fonte: Archdaily
41
2.2.2 PROGRAMA
O Centro Cultural Mauá é um projeto que visa promover a cultura e a educação na
região, programa do edifício com 17.483 m² contempla diversas atividades, como
salas multiuso, oficinas culturais, áreas expositivas, auditório, biblioteca, lojas e áreas
de convivência. A distribuição dos espaços foi pensada de acordo com a
funcionalidade, a acessibilidade e a integração dos usuários.
O subsolo abriga o estacionamento e o auditório, aproveitando o isolamento acústico
e o desnível do terreno. O térreo é o ponto de entrada dos visitantes, com lojas e
áreas de vivência. As áreas expositivas estão localizadas no primeiro e quarto andar
do edifício.
A biblioteca fica no terceiro andar, junto áreas de leitura e pesquisa. As oficinas e
salas multifuncionais ocupam os andares de quatro a seis, oferecendo diferentes
atividades artísticas e culturais. O sétimo andar é dedicado às áreas de convivência,
onde os visitantes podem relaxar e interagir. O oitavo e último andar abriga as áreas
de apoio e administrativa, responsáveis pelo funcionamento do espaço. O projeto
Endereço:
Tema:
Zoneamento:
Área do Terreno (m²):
Lotes
901 - 599 m²
066 - 235,66 m²
900 - 661,79 m²
007 - 2874,3 m²
índice área do projeto (m²)
Mínimo 0,2
Básico 2,5
Máximo 5
0,7 2539,16 ( 58,09%)
0,15 656 (15%)
Gabarito máximo: N/A
874
10927
ZUD 1 – Zona de Uso Diversificado
PARÂMETROS DE OCUPAÇÃO
4370,75
Área disponível
área conforme
legislação (m²)
17483 (CA. 4)
21854
Coeficiente de Aproveitamento (CA):
DADOS DO PROJETO
Av. Barão de Mauá, 1199 - Mauá - SP
Centro Cultural
Taxa de Ocupação (TO): 3060
Taxa de Permeabilidade: 656
Dimensão disponível (m)
33,3
Gabarito projeto:
Recuo de frente: 5
Recuo de fundos e laterais: 3
Figura 32. Tabela de índices urbanísticos com dados do projeto.
Fonte: Plano Diretor Mauá
42
busca valorizar a cultura local e oferecer um espaço dinâmico, diverso e inclusivo
para a população.
Figura 33. Diagrama de setorização Centro Cultural Mauá
Autoria Katia Braz
43
SETOR IDENTIFICADOR AMBIENTES M² QTD
QTD TOTAL
POR
AMBIENTE
SUBTOTAL
M² TOTAL POR
AMBIENTE
92,0 2 184,0
116,4 2 232,8
113,0 1 113,0
110,3 1 110,3
110,9 1 110,9
PAV. 1 1859,3 1 1859,3
PAV. 2 2115,4 1 2115,4
3 AUDITÓRIO 348,2 1 1 348,2 348,2
4 FOYER 132,5 1 1 132,5 132,5
5 SALA DE PROJEÇÃO 14,3 1 1 14,3 14,3
6 SALA DE ENSAIO 62,1 4 4 248,2 248,2
7 OFICINA DE ARTE 80,0 2 160,0
94,4 1 94,4
80,6 1 80,6
9 OFICINA DE DANÇA 62,9 2 125,7
10 OFICINA DE TEATRO 66,2 2 132,4
77,0 1 77,0
73,8 1 73,8
12 OFICINA DE JOGOS 125,7 1 125,7
13 OFICINA DE TECNOLOGIA 116,5 1 116,5
14 OFICINA DE FOTOGRAFIA 76,8 2 153,5
15 OFICIONA DE LEITURA 58,9 2 117,8
16 ATELIER DE CERÂMICA 63,4 2 126,8
17 OFICINA DE COSTURA 106,2 1 106,2
18 ESTÚDIO DE GRAVAÇÃO 124,0 1 124,0
19 BIBLIOTECA 1938,0 1 1 1938,0 1938,0
72,0 1 72,0
53,8 1 53,8
221,5 1 221,5
140,0 1 140,0
220,6 1 220,6
268,1 1 268,1
239,0 1 239,0
342,0 1 342,0
353,7 1 353,7
24 BRINQUEDOTECA 138,1 1 1 138,1 138,1
267,1 2 534,1
43,1 2 86,2
26 SALA DE CONFERÊNCIA 48,0 2 2 96,1 96,1
27 DIRETORIA 35,6 1 1 35,6 35,6
28 SALA ADM 17,5 3 3 52,5 52,5
29 SALA DE SEGURANÇA 28,8 1 1 28,8 28,8
30 RECEPÇÃO ADM. 13,1 1 1 13,1 13,1
31 RECEPÇÃO PRINCIPAL 29,6 1 1 29,6 29,6
32 BANHEIROS 25,2 18 18 453,2 453,2
33 BANHEIRO PCD 4,8 20 20 96,8 96,8
34 BANHEIRO AUDITÓRIO 16,1 2 2 32,3 32,3
35 VESTIÁRIOS 65,2 2 2 130,5 130,5
36 DEPÓSITO DE LIMPEZA 3,2 20 20 64,8 64,8
37 DEPÓSITO 118,4 1 1 118,4 118,4
38 ALMOXARIFADO 80,7 1 1 80,7 80,7
39 GLP/LIXO 10,0 1 10 10,0 10,0
40 REFEITÓRIO 274,9 1 1 274,9 274,9
41 CAMARIM 34,2 2 2 68,4 68,4
4207 1 4207,2 4207,2
1386,2 1 - 1386,2
17483,00
4207 24%
1386 10%
TOTAL % 100%
9147 52%
1923 11%
8%
620 4%
256 1%
1330
TOTAL M²
SALA MULTIFUNCIONAL 7 751,1
2 3974,7
20
361,5
PROGRAMA DE NECESSIDADES - CENTRO CULTURAL MAUÁ
TOTAL M² POR
SETOR
TOTAL %
OFICINA DE MÚSICA
OFICINA DE ARTESANATO
SALA DE INFORMÁTICA
1614,4
125,7
488,7
934,7
620,3
2
2
2
3
4
21
22
23
25
CIRCULAÇÃO
ESTACIONAMENTO ADM. / CARGA E DESCARGA
1
2
8
11
20
CAFETERIA
RESTAURANTE
PÁTIO
LOJAS
FORMAÇÃO CULTURAL
VIVÊNCIA
COMERCIAL
ADM
APOIO
Figura 34. Tabela de setorização Centro Cultural Mauá
Autoria Katia Braz
44
Os gráficos mostram o comparativo de setor do estudo de caso um, Cultural Hayy
Jameel, estudo de caso dois, Nuevo Centro Cultural e
o projeto do Centro Cultural Mauá.
As áreas do programa de cada setor é várias entre os
projetos com exceção das áreas de circulação que é
semelhante e proporcional a cada projeto.
Em contraste, no projeto Centro Cultural as áreas
administrativas são menores em comparação aos
estudos, dos mesmos modos o setor comercial que
não contempla os estudos de caso foi incluído no
projeto.
Portanto, os estudos de caso tiveram influência na
definição das áreas de modo que tivesse um
equilíbrio entre os setores e ultrapasse os 50% do
edifício, porém de forma equilibrada entre os outros
setores.
Figura 35. Gráfico comparativo de áreas entre os estudos de
caso e o projeto Centro Cultural Mauá
Autoria Katia Braz
45
2.3 CARACTERÍSTICAS CONSTRUTIVAS: MATERIAIS E ESTRUTURA
O projeto explora diferentes formas de usar o vidro como elemento de composição
arquitetônica, criando uma sensação de transparência no edifício. O vidro é usado
tanto nas fachadas quanto na cobertura do terraço e na cobertura do edifício,
permitindo a entrada de luz natural e a integração com o entorno. As janelas têm
esquadrias metálicas que possibilitam a ventilação e o controle da luminosidade
pelos usuários.
Para reforçar a ideia de permeabilidade, o projeto também utiliza uma pele de vidro
fixada em Spider Glas no terraço externo do quinto pavimento na fachada principal e
na fachada posterior, onde há um vazio no piso entre o subsolo e o quarto
pavimento.
Esse sistema confere uma maior uniformidade e continuidade ao vidro, além de
valorizar a estrutura metálica do edifício.
Figura 36. Spider Glass – Fixação vidros
Fonte: Walmetal
46
O sistema estrutural do edifício conforme indicado na figura 37 é composto por vigas
metálicas I com 70cm de altura e pilares metálicos H de 20x20cm, esse sistema foi escolhido
com a intenção de permitir grandes vãos com leveza visual.
O subsolo é composto por muros de contenção e vigas de concreto de e pilares de concreto
levando em consideração a resistência a compressão desses elementos no subsolo.
Por fim o edifico conta com dois núcleos rígidos que abrigam a escada de emergência e os
elevadores.
Para a fachada foram utilizadas chapas metálicas perfuradas com o formato autoral
Figura 37. Diagrama estrutural
Autoria Katia Braz
47
conforme já explicado no início do capítulo 2, a intenção é compor uma fachada
dinâmica e que remetesse a história do bairro.
Os bises verticais nas fachadas laterais do edifício têm a função de regular a entrada
de luz natural nos espaços destinados a atividades culturais, evitando o excesso de
claridade que poderia prejudicar o desempenho dessas atividades. Da mesma forma,
os bises na fachada posterior são horizontais para minimizar o impacto da radiação
solar, pois é a fachada que recebe uma maior incidência solar quando o sol está
mais alto no céu. Esses elementos são fixados diretamente nas estruturas de vigas e
pilares do edifício.
Figura 38. Brise fachada principal
Autoria Katia Braz
Figura 39. Refrêndia de brises
Fonte: Hunter Douglas
48
2.4 PEÇAS GRÁFICAS
Neste capítulo, faremos uma apresentação detalhada do projeto do Centro Cultural
Mauá, que foi desenvolvido com base na análise realizada neste caderno.
Figura 40. Planta do térreo
Autoria Katia Braz
49
Figura 41. Planta do subsolo
Autoria Katia Braz
50
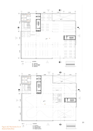
Figura 42. Pavimento 1 e 2.
Autoria Katia Braz
51
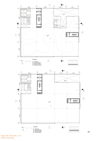
Figura 43. Pavimento 3 e 4.
Autoria Katia Braz
52
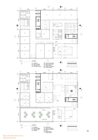
Figura 44. Pavimento 5 e 6.
Autoria Katia Braz
53
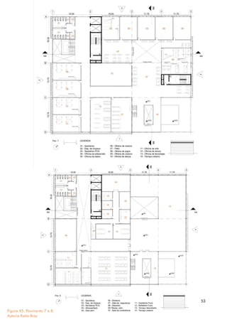
Figura 45. Pavimento 7 e 8.
Autoria Katia Braz
54
Figura 46. Pavimento 5 e 6.
Autoria Katia Braz
55
Figura 47. Cortes AA e BB.
Autoria Katia Braz
56
Figura 48. Corte ampliado.
Autoria Katia Braz
57
Figura 49. Fachada 1 e 2
Autoria Katia Braz
58
Figura 50. Fachada 3 e 4
Autoria Katia Braz
59
Figura 51. Fachada principal
Autoria Katia Braz
60
Figura 52. Fachada posterior
Autoria Katia Braz
61
REFERÊNCIAS
ARCHDAILY. Hayy Jameel Cultural Center. Disponível em:
https://www.archdaily.com/978537/hayy-jameel-cultural-center-waiwai. Acesso em:
25 abr. 2023
ARCHDAILY. Nuevo Centro Cultural. Disponível em:
https://www.archdaily.cl/cl/609204/nuevo-centro-cultural-fundc. Acesso em: 25 abr.
2023
ARCHDAILY. Pinacoteca de São Paulo. Disponível em:
https://www.archdaily.com/894758/pinacoteca-do-estado-de-sao-paulo-paulo-
mendes-da-rocha-plus-eduardo-colonelli-plus-weliton-ricoy-torres?ad_source=
search&ad_medium=projects_tab. Acesso em: 25 set. 2023
ARCHDAILY. The Whitney Museum. Disponível em:
https://www.archdaily.com/630574/the-whitney-museum-of-american-art-at-
gansevoort-renzo-piano-cooper-robertson. Acesso em: 25 set. 2023
ARDETE. Edifício Hexalace. Disponível em:
https://studioardete.com/project/hexalace/. Acesso em: 25 set. 2023
CENTRO-OESTE. Estrada de ferroa Santos a Jundiaí. Disponível em:
http://vfco.brazilia.jor.br/ferrovias/mapas/1965-Estrada-de-Ferro-Santos-a-
Jundiai.shtml. Acesso em: 13 out. 2023.
CONSÓRCIO ABC. Cultura no grande ABC. Disponível em:
https://consorcioabc.sp.gov.br/public/admin/globalarq/uploads/files/Cultura%
20no%20Grande%20ABC.pdf. Acesso em: 25 set. 2023
62
GEOSAMPA. Contexto Mauá. Disponível em: https://geosampa.
prefeitura.sp.gov.br/PaginasPublicas/_SBC.aspx. Acesso em: 25 set. 2023
IBGE. Equipamentos por município. Disponível em:
https://cidades.ibge.gov.br/brasil/panorama. Acesso em: 25 set. 2023
IBGE. Panorama do munício de Mauá. Disponível em: https://cidades.
ibge.gov.br/brasil/sp/maua/panorama. Acesso em 25 abr. 2023
HUNTER DOUGLAS. Referência Brises. Disponível em:
https://architectural.hunterdouglas.com.br/productos/brise-ab/. Acesso em: 25 set.
2023
LINA BO BARDI. Citações de Lina Bo Bardi. ArchDaily Brasil. Disponível em:
https://www.archdaily.com.br/br/758509/citacoes-de-lina-bo-bardi. Acessado em:
25 set. 2023
MITSUNAGA. Museu Barão de Mauá Mitsunaga 1980. Pinacoteca municipal de
Mauá. Disponível em: https://www.pinacotecamaua.com/acervo/t/
toshiharu-mitsunaga/. Acesso em: 20 set. 2023.
MITSUNAGA. Igreja Matriz de Mauá, Mitsunaga, 1986. Pinacoteca municipal de
Mauá. Disponível em: https://www.pinacotecamaua.com
/acervo/t/toshiharu-mitsunaga/. Acesso em: 20 set. 2023.
MITSUNAGA. Paineira 1980, Mitsunaga,2002. Pinacoteca municipal de Mauá.
Disponível em: https://www.pinacotecamaua.com/acervo/t/toshiharu-mitsunaga/.
Acesso em: 20 set. 2023.
63
MITSUNAGA. Paineira, Mitsunaga, 1990. Pinacoteca municipal de Mauá Disponível
em: https://www.pinacotecamaua.com/acervo/t/toshiharu-mitsunaga/. Acesso em:
20 set. 2023.
MITSUNAGA. Petroquímica, Mitsunaga, 1999. Pinacoteca municipal de Mauá
Disponível em: https://www.pinacotecamaua.com/acervo/t/toshiharu-mitsunaga/.
Acesso em: 20 set. 2023.
MITSUNAGA. Vila Magini 1985, Mitsunaga, 2001. Pinacoteca municipal de Mauá
Disponível em: https://www.pinacotecamaua.com/acervo/t/toshiharu-mitsunaga/.
Acesso em: 20 set. 2023.
MITSUNAGA. Vista cidade de Mauá, 1984. Pinacoteca municipal de Mauá.
Disponível em: https://www.pinacotecamaua.com/acervo/t/toshiharu-mitsunaga/.
Acesso em: 20 set. 2023.
PLANO DIRETOR MAUÁ. Lei 4.153 de 26 de março de 2007. Disponível em:
https://sistemas.maua.sp.gov.br/legislaconsulta/atosofic/Leis/4153.pdf. Acesso em:
25 de abr. de 2023
PLANO DIRETOR MAUÁ. Lei 4.968 de Uso e Ocupação do Solo. Disponível em:
https://sistemas.maua.sp.gov.br/legislaconsulta/detalhes.php?nlei=4968&tipolei=0
Acesso em: 25 abr. 2023
PORCELANA BRASIL. Conjunto de peças de porcelana da fábrica Cerqueira Leite.
Disponível em: https://porcelanabrasil
.blogspot.com/search/label/Cerqueira%20Leite Acesso em 25 set. 2023
64
PORCELANA BRASIL. Fábrica Cerâmica Cerqueira Leite.
Disponível em: https://porcelanabrasil.blogspot.com/2018/08/industria-ceramica-
cerquera-leite-sa.html Acesso em: 25 set. 2023
PREFEITURA DE MAUÁ. Bairro Cerqueira Leite. Disponível em:
https://www.maua.sp.gov.br/MapasTematicos/Cerqueira_Leite_Parte2_2_Jardim.pdf
Acesso em: 13 out. 2023
PREFEITURA DE MAUÁ. Perfil do município. Disponível em:
https://www.maua.sp.gov.br/Informacoes/PerfilAtual.aspx. Acesso em 25 abr. 2023
WEBGIS. Disponível em: http://webgis.maua.sp.gov.br/web/. Acesso em: 25 mai.
2023.
WALMETAL. Spider Glass – Fixação Vidros Disponível em:
https://walmetal.com.br/obras/. Acesso em 20. set. 2023.

TFG Centro Cultural Mauá

  • 1.
  • 2.
  • 3.
    3 FIAMFAAM – CENTROUNIVERSITÁRIO KATIA NUNES BRAZ CENTRO CULTURAL MAUÁ SÃO PAULO 2023
  • 4.
  • 5.
    5 KATIA NUNES BRAZ CENTROCULTURAL MAUÁ Trabalho Final de Graduação apresentado à banca examinadora do FIAM-FAAM Centro Universitário como requisito parcial a obtenção do título de Bacharel em Arquitetura e Urbanismo. Orientador: Felipe de Lima Gonzaga SÃO PAULO 2023
  • 6.
    6 AUTORIZO A REPRODUÇÃOE DIVULGAÇÃO TOTAL OU PARCIAL DESTE TRABALHO, POR QUALQUER MEIO CONVENCIONAL OU ELETRÔNICO, PARA FINS DE ESTUDO E PESQUISA, DESDE QUE CITADA A FONTE. Braz, Katia Centro Cultural Mauá / Katia Nunes Braz. São Paulo. FIAMFAAM – Centro Universitário, 2023. 64 Páginas Orientador: Felipe de Lima Gonzaga. Monografia (Trabalho Final de Graduação) | FIAMFAAM – Centro Universitário. Curso de Arquitetura e Urbanismo. São Paulo, 2023. 1. Centro Cultural; 2. Mauá; 3. Espaços públicos. I Sobrenome Orientador, Nome Orientador; II. FIAMFAAM – Centro Universitário; III Curso de Arquitetura e Urbanismo.
  • 7.
    7 KATIA NUNES BRAZ CENTROCULTURAL MAUÁ Trabalho Final de Graduação apresentado à Banca Examinadora do FIAM-FAAM Centro Universitário como requisito parcial a obtenção do título de Bacharel, em Arquitetura e Urbanismo. Data de aprovação: ____/____/________. Banca examinadora: ______________________ Prof.: Felipe de Lima Gonzaga FIAMFAAM – Orientador ______________________ Prof.: Aline da silva Escórcio Ribeiro Professor(a) Convidado(a) Interno(a) ______________________ Prof.: Domênica Maria da Silva Professor(a) Convidado(a) Externo(a) SÃO PAULO 2023
  • 8.
  • 9.
    9 “Uma tomada deconsciência coletiva é necessária, qualquer divagação é um delito na hora atual, a “desculturação” está em curso. Se o economista e o sociólogo podem diagnosticar com desprendimento, o artista deve agir, como parte ligada ao povo ativo, além de ligada ao intelectual.” (Lina Bo Bardi)
  • 10.
  • 11.
    11 SUMÁRIO INTRODUÇÃO...........................................................................................11 1 1.1 CONTEXTUALIZAÇÃO:CENTRO CULTURAL MAUÁ.................15 1.2 ANÁLISE URBANA……………………….....................................…17 1.2.1 REGIÃO ……………….…..….……..............……......…...17 1.2.2 BAIRRO…....…………….................................................19 1.2.3 ENTORNO IMEDIATO …………...........................…......20 1.3 ANÁLISE DO TERRENO ……………....……....................….…................24 2 O PROJETO………..…….……………..…………........….......…….…...29 2.1 PARTIDO ARQUITETÔNICO.......................................................31 2.2 FORMA E FUNÇÃO……………..................................................35 2.2.1 ESTUDOS DE CASO.....................................................35 2.2.2 PROGRAMA.................................................................41 2.3 CARACTERÍSTICAS CONSTRUTIVAS: MATERIAIS E ESTRUTURA.............45 2.4 PEÇAS GRÁFICAS...............................................................................48 REFERÊNCIAS..............................................................................................61
  • 12.
  • 13.
    13 LISTA DE FIGURAS Figura1. Contexto Mauá......................................................................................15 Figura 2. Equipamentos por município..................................................................15 Figura 3. Nuvem de Palavras................................................................................16 Figura 4. Gráfico comparativo de equipamento culturais no Grande ABC...............16 Figura 5. Estrada de ferroa Santos a Jundiaí..........................................................17 Figura 6. Bairro Cerqueira Leite.............................................................................19 Figura 7. Fábrica Cerâmica Cerqueira Leite...........................................................19 Figura 8. Peças de porcelana da Fábrica de Cerâmica Cerqueira Leite....................19 Figura 9. Mapa de uso do Solo e gabarito.............................................................21 Figura 10. Equipamentos......................................................................................22 Figura 11. Hierarquia viária e transporte. .............................................................22 Figura 12. Topografia...........................................................................................23 Figura 13. Tabela de índices urbanístico................................................................24 Figura 14. Mapa de Zoneamento..........................................................................25 Figura 15. Estudo solar Solstício de inverno no período da manhã e à tarde............26 Figura 16. Estudo solar Solstício de verão no período da manhã e à tarde..............26 Figura 17. The Whitney Museum...........................................................................29 Figura 18. Pinacoteca de São Paulo......................................................................30 Figura 19. Diagramas de partido 1......................................................................31 Figura 20. Diagramas de partido 2......................................................................32 Figura 21. Conjunto de peças de porcelana da fábrica Cerqueira Leite..................33 Figura 22. Edifício Hexalace.................................................................................33 Figura 23. Detalhe brise fachada.........................................................................34 Figura 24. Fachada principal Centro Cultural Mauá.............................................34 Figura 25. Hayy Jameel Cultural Center...............................................................35
  • 14.
    14 Figura 26. Tabelade programa do Centro Cultura Hayy jameel.............................36 Figura 27. Plantas do Centro Cultura Hayy Jameel Cultural Center........................37 Figura 28. Nuevo Centro Cultural........................................................................38 Figura 29. Corte Nuevo Centro Cultural...............................................................38 Figura 30. Tabela do programa do Nuevo Centro Cultural....................................39 Figura 31. Plantas Nuevo Centro Cultural.............................................................40 Figura 32. Tabela de índices urbanísticos com dados do projeto............................41 Figura 33. Diagrama setorizado Centro Cultural Mauá.........................................42 Figura 34. Tabela do programa Centro Cultural Mauá.........................................43 Figura 35. Gráfico comparativo...........................................................................44 Figura 36. Spider Glass – Fixação vidros..............................................................45 Figura 37. Diagrama estrutural............................................................................46 Figura 38. Brise metálico fachada principal...........................................................47 Figura 39. Referências brises................................................................................47 Figura 40. Pav. Térreo Centro Cultural Mauá........................................................48 Figura 41. Subsolo Centro Cultural Mauá..............................................................49 Figura 42. Pav. 1 e 2 Centro Cultural Mauá...........................................................50 Figura 43. Pav. 3 e Centro Cultural Mauá............................................................51 Figura 44. Pav. 5 e 6 Centro Cultural Mauá...........................................................52 Figura 45. Pav. 7 e 8 Centro Cultural Mauá...........................................................53 Figura 46. Planta de Cobertura Centro Cultural Mauá............................................54 Figura 47. Corte AA e Corte BB.............................................................................55 Figura 48. Corte ampliado....................................................................................56 Figura 49. Fachada 1 e 2......................................................................................57 Figura 50. Fachada 2 e 3.....................................................................................58 Figura 51. Fachada principal..............................................................................59 Figura 52. Fachada principal..............................................................................60
  • 15.
  • 16.
    16 LISTA DE ABREVIATURAS SSU– Secretária de Serviços Urbanos TO. – Taxa de Ocupação CA. – Coeficiente de aproveitamento IBGE - Instituto Brasileiro de Geografia e Estatística SESI - Serviço Social da Indústria
  • 17.
  • 18.
  • 19.
  • 20.
  • 21.
    11 INTRODUÇÃO Esse Trabalho deFinalização de Curso faz parte do projeto apresentado a disciplina TFG II do curso de Arquitetura e Urbanismo da FIAMFAAM Centro Universitário. O objetivo é fundamentar os conceitos quem embasaram as decisões projetuais elaborados para a proposta do Centro Cultura Mauá localizada no bairro Jardim Cerqueira Leite na cidade de Mauá. Esse caderno está estruturado em dois capítulos, o primeiro capítulo trata da contextualização do tema centro cultural utilizando como base a pesquisa realizada pelo Consórcio Intermunicipal Grande ABC; a seguir é apresentada a análise urbana que leva em conta a escala regional que busca estabelecer as relações da área com o restante da cidade sob os aspectos de transporte, mobilidade, socioeconômico, etc.; do bairro Cerqueira Leite com uma introdução na história da cidade de Mauá e em como a indústria da Cerâmica influenciou o crescimento econômico e populacional na região. O segundo capítulo é subdividido em quatro partes. Em primeiro momento é exposto o partido arquitetônico adotado como solução projetual; a seguir nas partes dois e três, respectivamente, são apresentados os estudos de caso que serviram de base para criação do programa de necessidades, assim como o programa propriamente dito; além dos materiais e o sistema estrutural definidos para a proposta. Por fim será apresentado as peças gráficas que ilustram o projeto arquitetônico do Centro Cultural Mauá.
  • 22.
  • 23.
  • 24.
  • 25.
    15 1.1 CONTEXTUALIZAÇÃO: CENTROCULTURAL MAUÁ O Centro Cultural Mauá é um projeto que visa oferecer à população de Mauá e da Região do Grande ABC um espaço de referência para a realização de atividades culturais, está localizado no Bairro Cerqueira Leite, uma área que carece de equipamentos culturais e que pode se beneficiar da presença de um edifício que promova a integração e a participação da comunidade. O Centro Cultural Mauá pretende ser um ponto de encontro para as pessoas que buscam cultura, lazer, educação e cidadania em um único lugar. A escolha do local do Centro Cultural Mauá foi baseada em uma análise comparativa com as outras cidades do Grande ABC conforme a figura 2, que mostrou que Mauá possui uma deficiência de equipamentos culturais em relação às demais. Segundo a pesquisa “Cultura no Grande ABC”, realizada pelo Consórcio Intermunicipal Grande ABC, a maioria dos equipamentos culturais que a população tem interesse em visitar estão na cidade de São Paulo, que é vista como uma referência nesse aspecto, isso é demonstrado na figura 3. Figura 1. Contexto Mauá Fonte: Geosampa Figura 2. Equipamentos por município Fonte: IBGE
  • 26.
    16 Além disso, ográfico abaixo ilustra que o SESC Santo André e o Teatro Lauro Gomes de São Bernardo do Campo são os equipamentos culturais mais frequentados do Grande ABC, enquanto o Museu Barão de Mauá, em Mauá, recebe poucos visitantes. Isso indica que os equipamentos culturais de Mauá não são tão atrativos ou diversificados para atender às demandas da população. Portanto, o Centro Cultural Mauá surge como uma proposta de valorização da cultura local e regional, que pode estimular a interação e a comunicação entre as pessoas e a sociedade. O Centro Cultural Mauá também pode ser um parceiro das escolas, oferecendo atividades culturais que favoreçam o desempenho escolar, o aprendizado de novas habilidades e conhecimentos, e a formação profissional dos estudantes. O Centro Cultural Mauá é um projeto que visa contribuir para o desenvolvimento cultural, social e econômico de Mauá e do Grande ABC. Figura 3. Nuvem de palavras Fonte: Consórcio Abc Figura 4. Gráfico comparativo de equipamento culturais no Grande ABC Fonte: Consórcio Abc
  • 27.
    17 1.2 ANÁLISE URBANA 1.2.1REGIÃO Mauá é uma cidade com um passado rico e diverso, que se destaca pela sua importância industrial e pela sua posição geográfica. A cidade surgiu em 1954, quando se emancipou de Santo André, e foi batizada de Mauá em homenagem ao Barão de Mauá, um dos precursores da industrialização no Brasil. A estação Pilar (hoje Mauá), inaugurada em 1883, fazia parte da ferrovia que ligava a capital ao porto de Santos. Isso atraiu várias indústrias de cerâmica e porcelana, que aproveitavam o solo rico em argila branca da região. Essas indústrias foram fundamentais para a economia da cidade, que ficou conhecida como "cidade porcelana". Figura 5. Estrada de ferro Santos a Jundiaí Fonte: Centro-Oeste
  • 28.
    18 Hoje, Mauá tem61 km² de área, sendo cerca de 13 km² em área de proteção de mananciais (PREFEITURA DE MAUÁ, 2023). Sua população é de 418.261 habitantes (IBGE,2022), o que a coloca como a terceira mais populosa do Grande ABC, atrás apenas de São Bernardo do Campo e Santo André. A cidade também se destaca por suas duas zonas de desenvolvimento econômico, o Polo Industrial de Sertãozinho e o Polo Petroquímico de Capuava, (PREFEITURA DE MAUÁ, 2023). No que se refere ao transporte, a cidade conta com as estações Mauá, Capuava e Guapituba da CPTM da linha 10 turquesa, além do Terminal Municipal de ônibus próximo à estação Mauá. A cidade também é servida pelas linhas intermunicipais do corredor ABCD da empresa Next Mobilidade, que ligam o Grande ABC à capital paulista.
  • 29.
    19 1.2.2 BAIRRO Uma dascaracterísticas históricas da cidade de Mauá é a sua tradição na produção de cerâmica e porcelanas, que remonta à década de 30. Uma das fábricas mais famosas dessa época era a Indústria De Cerâmica Cerqueira Leite, que se destacava pela qualidade e variedade das peças de louça que fabricava. No entanto, a fábrica não resistiu à concorrência e à crise econômica e encerrou as suas atividades na década de 70. O terreno onde a fábrica funcionava foi desapropriado pela prefeitura e transformado em um complexo de serviços públicos, que inclui o Poupatempo Mauá, a sede da BRK e o pátio e estacionamento da SSU. Figura 6. Bairro Cerqueira Leite Fonte: Prefeitura De Mauá Figura 7. Fábrica Cerâmica Cerqueira Leite Fonte: Porcelana Brasil Figura 8. Peças de porcelana da Fábrica de Cerâmica Cerqueira Leite Fonte: Porcelana Brasil
  • 30.
    20 1.2.3 ENTORNO IMEDIATO Afigura 9 apresentar o uso do solo diversificado com a predominâncias de comércio e serviços na Avenida Barão de Mauá onde o terreno está localizado. Do mesmo modo, o mapa demonstra a variação de gabarito predominante entre 6m e 9m. Diante disso o projeto se propõe a quebrar a relação com os gabaritos existentes devido aos índices urbanísticos que serão apresentados no próximo capítulo. Nas proximidades do terreno, há equipamentos públicos e privados, como o Poupatempo de Mauá, a escola SESI, o Museu Barão de Mauá, conforme indicado na figura 10. Além disso, o pátio da SSU é utilizado para a realização de uma feira livre aos sábados. A implantação do Centro Cultural próximo ao SESI pode atrair e beneficiar os estudantes da escola e a comunidade em geral. Além disso, as áreas de convívio podem ser utilizadas pelos usuários que frequentam a feira livre, criando um ambiente de interação e lazer. No que se refere ao transporte, a figura 11 apresenta os pontos de ônibus mais próximos do terreno, que estão a menos de 300m de distância e oferecem acesso a 18 linhas municipais e 2 linhas intermunicipais. O terreno é acessado pela Avenida Barão de Mauá, que é uma via coletora que liga os principais bairros da cidade, porém com sentido único, esse ponto será fundamental para embasar as diretrizes projetuais ao acesso ao terreno. A figura 12 mostra a topografia da região, que é marcada por declives acentuados em Mauá, mas que apresenta um relevo mais suave no entorno do terreno, por estar próxima ao Rio Tamanduateí.
  • 31.
    21 A situação topográficadentro do terreno apresenta um desafio para o acesso ao lote de forma adequada, pois há uma diferença de 4m em relação a rua. Portanto trata- se de um fator primordial para estabelecer o acesso de pedestres. Figura 9. Mapa de uso do Solo e gabarito Fonte: Webgis
  • 32.
    22 Figura 10. Equipamentos Fonte:Webgis Figura 11. Hierarquia viária e transporte Fonte: Webgis
  • 33.
  • 34.
    24 1.3 ANÁLISE DOTERRENO O terreno de implantação do Centro Cultura Mauá é um conjunto de loteamentos existentes que ao todo possui 4.370,75 m², localizado em uma ZUD 1 – Zona de Uso Diversificado como indicado na figura 14. Conforme descrito na Lei 4.153 (PLANO DIRETOR MAUÁ, 2007) destinam-se à localização de estabelecimentos comerciais e industriais, cujo processo produtivo seja complementar das atividades do meio urbano em que se situem e que com eles se compatibilizem, independente do uso de métodos especiais de controle de poluição, não ocasionando, em nenhum caso, inconvenientes à saúde, ao bem-estar e à segurança da população vizinha. Os índices urbanísticos estão dispostos na figura 13 com dados extraídos da Lei 4.968 de Uso e Ocupação do Solo. Endereço: Tema: Zoneamento: Área do Terreno (m²): Lotes 901 - 599 m² 066 - 235,66 m² 900 - 661,79 m² 007 - 2874,3 m² índice Mínimo 0,2 Básico 2,5 Máximo 5 0,7 0,15 Recuo de fundos e laterais: 3 Taxa de Ocupação (TO): Dimensão disponível (m) 21854 Coeficiente de Aproveitamento (CA): Taxa de Permeabilidade: 3060 656 N/A Gabarito máximo: Recuo de frente: 5 874 10927 Centro Cultural área conforme legislação (m²) ZUD 1 – Zona de Uso Diversificado PARÂMETROS DE OCUPAÇÃO 4370,75 Área disponível DADOS DO PROJETO Av. Barão de Mauá, 1199 - Mauá - SP Figura 13. Tabela de índices urbanístico com dados retirados da Lei 4.968 de Uso e Ocupação do Solo Fonte: Plano Diretor Mauá
  • 35.
    25 O estudo solarapresentado nas figuras 15 e 16 indica um leve sombreamento do edifício na lateral esquerda, além disso, a fachada principal do terreno receberá menos luz durante o dia devido ao posicionamento do terreno em relação ao norte esse aspecto será relevante para definir a implantação do terreno. No entanto, como já foi dito no capítulo anterior, o edifício vai romper a relação com o padrão existente que, devido aos índices urbanos, resulta em um edifício de até 21.854 m² por causa do CA. máximo (5), impondo uma verticalização inescapável que causará um sombreamento do Centro Cultural Mauá em seu entorno. . Figura 14. Mapa de Zoneamento Fonte: Webgis
  • 36.
    26 Diante dos tópicosmencionados, nota-se que a cidade Mauá possui uma carência de equipamentos públicos atrativos para a população, o projeto arquitetônico deve considerar os desafios que o terreno apresenta diante da verticalização inevitável devido aos indicies urbanístico exigidos pela legislação, deve buscar uma integração harmoniosa com o entorno, utilizando elementos que amenizem o impacto visual. Do mesmo modo, deve garantir a acessibilidade e conexão do lote com a calçada diante do desnível de 4m em relação a rua, além disso, como o acesso de veículos é limitado será preciso posicionar estrategicamente para que não interfira no fluxo de pedestre. Por fim, o projeto deve aproveitar a orientação solar favorável do terreno para obter uma iluminação natural equilibrada. Figura 15. Estudo solar Solstício de inverno no período da manhã e à tarde. Arquivo produzido por Katia Braz Figura 16. Estudo solar Solstício de verão no período da manhã e à tarde. Arquivo produzido por Katia Braz
  • 37.
  • 38.
  • 39.
    29 2. O PROJETO 2.1PARTIDO ARQUITETÔNICO O partido do projeto tem a intenção de suavizar o peso visual do volume em relação ao seu entorno com gabarito predominante de até três pavimentos, porém devido ao potencial construtivo considerado o edifício é verticalizado. Para isso, o projeto propõe algumas estratégias arquitetônicas, como a ocupação parcial do térreo, que cria um espaço público de convivência e lazer, os pavimentos tipo, que apresentam diferentes dimensões e recortes, criando um volume dinâmico e permeável, que se afasta da forma pura inicial, e o terraço, que privilegia a vista da rua para a circulação vertical. O terraço no quinto pavimento, que foi inspirado na circulação externa do The Whitney Museum, obra do arquiteto Renzo Piano. A ideia é que as escadas que levam ao terraço descoberto sejam visíveis da rua, criando um efeito dinâmico e convidativo. Figura 17. The Whitney Museum Fonte: Archdaily
  • 40.
    30 Essa circulação possuium fechamento e cobertura de vidro para proteger o terraço da chuva e possibilitando seu uso em qualquer clima, além disso o projeto propôs um piso que atravessa o espaço do terraço apenas parcialmente, permitindo a circulação dos visitantes em cada pavimento e a visualização dos andares inferiores. Essa solução se inspirou na passarela interna com cobertura de vidro da Pinacoteca de São Paulo, projeto do arquiteto Paulo Mendes da Rocha. Outro recurso utilizado é a faixa de descompressão entre os pavimentos um e três, que ajuda a diminuir o peso visual do edifício e a proporcionar áreas livres para os usuários. O acesso de veículos é feito pela lateral esquerda do lote, minimizando os conflitos com os pedestres no nível da calçada. O acesso de pedestres é feito por uma escada externa e um piso inclinado 4,99% que supera o desnível de 2m após a planificação do terreno na cota 769. Figura 18. Pinacoteca de São Paulo Fonte: Archdaily
  • 41.
    31 Figura 19. Diagramasde partido. Arquivo produzido por Katia Braz
  • 42.
    32 Figura 20. Diagramasde partido. Arquivo produzido por Katia Braz
  • 43.
    33 Por fim, afachada do Centro Cultural Mauá foi concebida a partir do projeto do edifício Comercial Hexalace, que se destaca pela geometria hexagonal e pela transparência. O objetivo foi criar uma fachada que se harmonizasse com o entorno e que remetesse à história da cidade e do bairro, diante disso foi elaborado elemento geométrico com conjuntos de decágonos que remete à forma das peças de porcelana apresentadas na figura 18, criando um diálogo entre o passado e o presente. O elemento também confere dinamismo e modernidade à composição, contrastando com as linhas retas e simples do restante da construção. Figura 21. Conjunto de peças de porcelana da fábrica Cerqueira Leite. Fonte: Porcelana Brasil Figura 22. Conjunto de peças de porcelana da fábrica Cerqueira Leite. Fonte: Ardete
  • 44.
    34 Figura 23. Detalheelemento de fachada. Autoria Katia Braz Figura 24. Fachada principal Centro Cultural Mauá. Autoria Katia Braz
  • 45.
    35 2. FORMA EFUNÇÃO 2.2.1 ESTUDOS DE CASO Para idealização do Centro Cultural Mauá foi analisado dois estudos de casos com área semelhantes ao projeto com o tema centro cultural, contudo durante a elaboração do projeto houve alteração no limite do terreno causando um aumento na metragem total do projeto, por conta disso os estudos de caso têm a metragem diferentes. Foi escolhido o Centro Cultural Hayy jameel do escritório Waiwai e o Nuevo Centro Cultural do escritório FÜNDC. Hayy Jameel Cultural Center é um complexo de uso misto para as artes em Jeddah, Arábia Saudita, que incentiva a interação entre as mais amplas disciplinas criativas: arte, música, cinema e arquitetura. Projetado pelo estúdio de arquitetura Waiwai e concluído em 2021 com 16.000 m². O complexo tem galerias de arte, escritórios, estúdios de artistas, cinema e teatro, restaurante e muito mais, incluindo um espaçoso pátio paisagístico com vegetação local. O projeto é concebido como um hub dinâmico e criativo para a comunidade. O pátio central é o elemento principal da arquitetura e do programa, conectando todos os níveis do projeto e criando espaços compartilhados e animados. O pátio também é cercado por terraços sombreados e escalonados que servem como extensões do pátio. A fachada exterior é projetada para o clima e a cultura do Oriente Médio, recebendo luz natural nos espaços interiores e maximizando as transparências onde possível, ao mesmo tempo em que mantém a privacidade dos edifícios vizinhos. A fachada principal é concebida como uma ‘tela em branco’ para comissionar obras públicas de artistas e designers emergentes e estabelecidos. Figura 25. Centro Cultura Hayy jameel. Fonte: Archdaily
  • 46.
    36 O estudo decaso selecionado apresenta uma variedade de atividades culturais em seu programa e uma distribuição espacial que explora os pátios e os níveis do edifício. Embora alguns espaços não sejam adequados para o projeto do Centro Cultural Mauá, esse estudo de caso serviu como referência principal para o programa de necessidades. SETOR AMBIENTE IDENTIFICAÇÃO NA PLANTA AMBIENTES SEPARADOS M² QTD TOTAL M² TOTAL M² POR SETOR % SEM ESTACIONAMENTO % COM ESTACIONAMENTO CLUBE DE COMÉDIA E ESPAÇO PARA APRESENTAÇÃO 1 CLUBE DE COMÉDIA E ESPAÇO PARA APRESENTAÇÃO 382,28 1 382,28 2 SALA 1 195 3 SALA 2 265,43 4 SALA 3 341,98 5 SALA 4 465,36 6 SALA 5 270,1 7 SALA 6 144,81 8 SALA 7 140 9 SALA 8 155 10 SALA 9 229,02 11 SALA 10 100 12 SALÃO 1 195 13 SALÃO 2 265 CINEMA 14 CINEMA 550 1 550 15 ESPAÇO EMPREENDEDOR 1 316,66 16 ESPAÇO EMPREENDEDOR 2 187,7 17 ESTÚDIO AUDIO /VISUAL 1 200 18 ESTÚDIO AUDIO /VISUAL 2 140 19 ESTÚDIO AUDIO /VISUAL 3 17,00 20 ESTÚDIO ARTISTICO 1 60 21 ESTÚDIO ARTISTICO 2 60 22 ESTÚDIO ARTISTICO 3 60 23 ESTÚDIO DE PRODUÇÃO 60 1 24 GINÁSIO 1 195 25 GINÁSIO 2 125 RESTAURANTE 26 RESTAURANTE 195 1 195 CAFÉ E BIBLIOTECA 27 CAFÉ E BIBLIOTECA 250 1 250 SALA DE ORAÇÃO 28 SALA DE ORAÇÃO 95 1 95 ESCRITÓRIOS 29 ESCRITÓRIOS 235 1 235 SALA DE SEGURANÇA 30 SALA DE SEGURANÇA 25 1 25 SALA DE REUNIÃO 31 SALA DE REUNIÃO 103,18 1 110 SALA ADM 32 SALA ADM 25 2 50 COZINHA 33 COZINHA 80,5 1 90 SALA DE APOIO 34 SALA DE APOIO 47,86 7 335 BANHEIROS 35 BANHEIROS 35 9 315 DEPÓSITO LIMPEZA 36 DEPÓSITO LIMPEZA 27,5 2 55 DEPÓSITO 37 DEPÓSITO 230 3 690 DESPENSA 38 DESPENSA 25 1 25 ALMOXARIFADO 39 ALMOXARIFADO 45 1 45 RECEBIMENTO 40 RECEBIMENTO 45 1 45 41 ESTACIONAMENTO 5016,36 1 5016,36 5016,36 - 31% 3303,3 1 3303,3 3303,3 30% 21% 16000 10983,64 * DEVIDO A PREDOMINÂNCIA DO ESTACIONAMENTO NA SETORIZAÇÃO DO ESTUDO DE CASO 2 REALIZEI O GRÁFICO DESCONSIDERANDO O ESTACIONAMENTO PARA COMPARAÇÃO ENTRE OS PROJETOS , PORÉM NA TABELA HÁ UMA COLUNA COM A PORCENTAGEM INCLUINDO O ESTACIONAMENTO. ADM APOIO ESTACIONAMENTO CIRCULAÇÃO TOTAL M² COM ESTACIONAMENTO TOTAL % 100,0% 100,0% TOTAL M² SEM ESTACIONAMENTO 3,82% 3,00% 1600 15% 10% 460 1101,36 320 860 7,82% 5,00% 420 10 2306,7 ESPAÇO MULTIUSO PARA EVENTOS 2 3 3 2 ESTUDO DE CASO 1 - Hayy Jameel Cultural Center / waiwai FORMAÇÃO CULTURAL 4800,34 44% 30% 2 ESPAÇO DE EXPOSITIVO SALAS DE AULA VIVÊNCIA GINÁSIO Figura 26. Tabela de programa do Centro Cultura Hayy jameel. Autoria Katia Braz
  • 47.
    37 Figura 27. Plantasdo Centro Cultura Hayy Jameel com Setorização. Fonte: Archdaily
  • 48.
    38 O segundo estudoé o Nuevo Centro Cultural. Realizado pelo escritório FÜNDC em 2011 com área de 10.231 m². Localizado em Madri, Espanha, o projeto faz parte de uma intervenção urbana com mais de 20.000 m² construídos. Consiste na pedonalização da praça e ruas envolventes, urbanizando-as com novos pavimentos ininterruptos, fontes e mega- plantadores em torno de um novo centro cultural composto por arquitetura antiga e contemporânea que trabalham em conjunto. Sob estas áreas existe um parque de estacionamento subterrâneo de dois níveis que inclui paragens de autocarro e túneis para o reencaminhamento do tráfego rodoviário e consequente eliminação do mesmo à superfície. As salas conversíveis permitem a mudança de uso da arquitetura cultural, que pode passar de uma configuração expositiva a um auditório por meio da manipulação de plataformas móveis. Figura 28. Nuevo Centro Cultural. Fonte: Archdaily Figura 29. Corte Nuevo Centro Cultural. Fonte: Archdaily
  • 49.
    39 Em contraste como projeto anterior, o Nuevo Centro Cultural tem um setor de formação cultural menos diversificado, mas ocupa mais de 50% da sua área total. Esse foi um dos critérios para a seleção do projeto, que prioriza as atividades culturais e oferece espaços flexíveis para diferentes usos. SETOR AMBIENTE IDENTIFICAÇÃO NA PLANTA AMBIENTES SEPARADOS M² QTD TOTAL M² TOTAL M² POR SETOR % SEM ESTACIONAMENTO % COM ESTACIONAMENTO SALA a SALA b SALA c SALA d ENTRADA 31 2 SALA DE EXPOSIÇÕES (TÉRREO) 139 3 SALA DE EXPOSIÇÕES (2º PAV) 90 4 TERRAÇO DE EXPOSIÇÕES 173 SALA DE AULA / AUDITÓRIO 5 SALA DE AULA / AUDITÓRIO 98 1 98 OFICINAS 6 OFICINAS 33 3 33 VIVÊNCIA CAFETERIA 7 CAFETERIA 52 1 52 52 4,9% 0,5% SALA 1 12,5 SALA 2 12,5 39 39 12 12 252 1 252 252 23,6% 2,4% 9125,0 1 9165 9165 - 89,6% 10243 1078 CIRCULAÇÃO ESTACIONAMENTO TOTAL M² COM ESTACIONAMENTO TOTAL M² SEM ESTACIONAMENTO * DEVIDO A PREDOMINÂNCIA DO ESTACIONAMENTO NA SETORIZAÇÃO DO ESTUDO DE CASO 2 REALIZEI O GRÁFICO DESCONSIDERANDO O ESTACIONAMENTO PARA COMPARAÇÃO ENTRE OS PROJETOS , PORÉM NA TABELA HÁ UMA COLUNA COM A PORCENTAGEM INCLUINDO O ESTACIONAMENTO. 1 134 ESPAÇO DE EXPOSITIVO ADM ESCRITÓRIOS 8 APOIO BANHEIROS 9 BANHEIROS 165 698 402 25 25 51 TOTAL % 65,5% 7,0% 2,3% 0,2% 3,7% 0,3% 100,0% 100,0% 4 3 2 6 ESTUDO DE CASO 2 - Nuevo Centro Cultural / FÜNDC FORMAÇÃO CULTURAL SALA MULTIFUNCIONAL Figura 30. Tabela do programa do Nuevo Centro Cultural.
  • 50.
    40 MEZANINO TÉRREO Figura 31. PlantaNuevo Centro Cultural setorizada. Fonte: Archdaily
  • 51.
    41 2.2.2 PROGRAMA O CentroCultural Mauá é um projeto que visa promover a cultura e a educação na região, programa do edifício com 17.483 m² contempla diversas atividades, como salas multiuso, oficinas culturais, áreas expositivas, auditório, biblioteca, lojas e áreas de convivência. A distribuição dos espaços foi pensada de acordo com a funcionalidade, a acessibilidade e a integração dos usuários. O subsolo abriga o estacionamento e o auditório, aproveitando o isolamento acústico e o desnível do terreno. O térreo é o ponto de entrada dos visitantes, com lojas e áreas de vivência. As áreas expositivas estão localizadas no primeiro e quarto andar do edifício. A biblioteca fica no terceiro andar, junto áreas de leitura e pesquisa. As oficinas e salas multifuncionais ocupam os andares de quatro a seis, oferecendo diferentes atividades artísticas e culturais. O sétimo andar é dedicado às áreas de convivência, onde os visitantes podem relaxar e interagir. O oitavo e último andar abriga as áreas de apoio e administrativa, responsáveis pelo funcionamento do espaço. O projeto Endereço: Tema: Zoneamento: Área do Terreno (m²): Lotes 901 - 599 m² 066 - 235,66 m² 900 - 661,79 m² 007 - 2874,3 m² índice área do projeto (m²) Mínimo 0,2 Básico 2,5 Máximo 5 0,7 2539,16 ( 58,09%) 0,15 656 (15%) Gabarito máximo: N/A 874 10927 ZUD 1 – Zona de Uso Diversificado PARÂMETROS DE OCUPAÇÃO 4370,75 Área disponível área conforme legislação (m²) 17483 (CA. 4) 21854 Coeficiente de Aproveitamento (CA): DADOS DO PROJETO Av. Barão de Mauá, 1199 - Mauá - SP Centro Cultural Taxa de Ocupação (TO): 3060 Taxa de Permeabilidade: 656 Dimensão disponível (m) 33,3 Gabarito projeto: Recuo de frente: 5 Recuo de fundos e laterais: 3 Figura 32. Tabela de índices urbanísticos com dados do projeto. Fonte: Plano Diretor Mauá
  • 52.
    42 busca valorizar acultura local e oferecer um espaço dinâmico, diverso e inclusivo para a população. Figura 33. Diagrama de setorização Centro Cultural Mauá Autoria Katia Braz
  • 53.
    43 SETOR IDENTIFICADOR AMBIENTESM² QTD QTD TOTAL POR AMBIENTE SUBTOTAL M² TOTAL POR AMBIENTE 92,0 2 184,0 116,4 2 232,8 113,0 1 113,0 110,3 1 110,3 110,9 1 110,9 PAV. 1 1859,3 1 1859,3 PAV. 2 2115,4 1 2115,4 3 AUDITÓRIO 348,2 1 1 348,2 348,2 4 FOYER 132,5 1 1 132,5 132,5 5 SALA DE PROJEÇÃO 14,3 1 1 14,3 14,3 6 SALA DE ENSAIO 62,1 4 4 248,2 248,2 7 OFICINA DE ARTE 80,0 2 160,0 94,4 1 94,4 80,6 1 80,6 9 OFICINA DE DANÇA 62,9 2 125,7 10 OFICINA DE TEATRO 66,2 2 132,4 77,0 1 77,0 73,8 1 73,8 12 OFICINA DE JOGOS 125,7 1 125,7 13 OFICINA DE TECNOLOGIA 116,5 1 116,5 14 OFICINA DE FOTOGRAFIA 76,8 2 153,5 15 OFICIONA DE LEITURA 58,9 2 117,8 16 ATELIER DE CERÂMICA 63,4 2 126,8 17 OFICINA DE COSTURA 106,2 1 106,2 18 ESTÚDIO DE GRAVAÇÃO 124,0 1 124,0 19 BIBLIOTECA 1938,0 1 1 1938,0 1938,0 72,0 1 72,0 53,8 1 53,8 221,5 1 221,5 140,0 1 140,0 220,6 1 220,6 268,1 1 268,1 239,0 1 239,0 342,0 1 342,0 353,7 1 353,7 24 BRINQUEDOTECA 138,1 1 1 138,1 138,1 267,1 2 534,1 43,1 2 86,2 26 SALA DE CONFERÊNCIA 48,0 2 2 96,1 96,1 27 DIRETORIA 35,6 1 1 35,6 35,6 28 SALA ADM 17,5 3 3 52,5 52,5 29 SALA DE SEGURANÇA 28,8 1 1 28,8 28,8 30 RECEPÇÃO ADM. 13,1 1 1 13,1 13,1 31 RECEPÇÃO PRINCIPAL 29,6 1 1 29,6 29,6 32 BANHEIROS 25,2 18 18 453,2 453,2 33 BANHEIRO PCD 4,8 20 20 96,8 96,8 34 BANHEIRO AUDITÓRIO 16,1 2 2 32,3 32,3 35 VESTIÁRIOS 65,2 2 2 130,5 130,5 36 DEPÓSITO DE LIMPEZA 3,2 20 20 64,8 64,8 37 DEPÓSITO 118,4 1 1 118,4 118,4 38 ALMOXARIFADO 80,7 1 1 80,7 80,7 39 GLP/LIXO 10,0 1 10 10,0 10,0 40 REFEITÓRIO 274,9 1 1 274,9 274,9 41 CAMARIM 34,2 2 2 68,4 68,4 4207 1 4207,2 4207,2 1386,2 1 - 1386,2 17483,00 4207 24% 1386 10% TOTAL % 100% 9147 52% 1923 11% 8% 620 4% 256 1% 1330 TOTAL M² SALA MULTIFUNCIONAL 7 751,1 2 3974,7 20 361,5 PROGRAMA DE NECESSIDADES - CENTRO CULTURAL MAUÁ TOTAL M² POR SETOR TOTAL % OFICINA DE MÚSICA OFICINA DE ARTESANATO SALA DE INFORMÁTICA 1614,4 125,7 488,7 934,7 620,3 2 2 2 3 4 21 22 23 25 CIRCULAÇÃO ESTACIONAMENTO ADM. / CARGA E DESCARGA 1 2 8 11 20 CAFETERIA RESTAURANTE PÁTIO LOJAS FORMAÇÃO CULTURAL VIVÊNCIA COMERCIAL ADM APOIO Figura 34. Tabela de setorização Centro Cultural Mauá Autoria Katia Braz
  • 54.
    44 Os gráficos mostramo comparativo de setor do estudo de caso um, Cultural Hayy Jameel, estudo de caso dois, Nuevo Centro Cultural e o projeto do Centro Cultural Mauá. As áreas do programa de cada setor é várias entre os projetos com exceção das áreas de circulação que é semelhante e proporcional a cada projeto. Em contraste, no projeto Centro Cultural as áreas administrativas são menores em comparação aos estudos, dos mesmos modos o setor comercial que não contempla os estudos de caso foi incluído no projeto. Portanto, os estudos de caso tiveram influência na definição das áreas de modo que tivesse um equilíbrio entre os setores e ultrapasse os 50% do edifício, porém de forma equilibrada entre os outros setores. Figura 35. Gráfico comparativo de áreas entre os estudos de caso e o projeto Centro Cultural Mauá Autoria Katia Braz
  • 55.
    45 2.3 CARACTERÍSTICAS CONSTRUTIVAS:MATERIAIS E ESTRUTURA O projeto explora diferentes formas de usar o vidro como elemento de composição arquitetônica, criando uma sensação de transparência no edifício. O vidro é usado tanto nas fachadas quanto na cobertura do terraço e na cobertura do edifício, permitindo a entrada de luz natural e a integração com o entorno. As janelas têm esquadrias metálicas que possibilitam a ventilação e o controle da luminosidade pelos usuários. Para reforçar a ideia de permeabilidade, o projeto também utiliza uma pele de vidro fixada em Spider Glas no terraço externo do quinto pavimento na fachada principal e na fachada posterior, onde há um vazio no piso entre o subsolo e o quarto pavimento. Esse sistema confere uma maior uniformidade e continuidade ao vidro, além de valorizar a estrutura metálica do edifício. Figura 36. Spider Glass – Fixação vidros Fonte: Walmetal
  • 56.
    46 O sistema estruturaldo edifício conforme indicado na figura 37 é composto por vigas metálicas I com 70cm de altura e pilares metálicos H de 20x20cm, esse sistema foi escolhido com a intenção de permitir grandes vãos com leveza visual. O subsolo é composto por muros de contenção e vigas de concreto de e pilares de concreto levando em consideração a resistência a compressão desses elementos no subsolo. Por fim o edifico conta com dois núcleos rígidos que abrigam a escada de emergência e os elevadores. Para a fachada foram utilizadas chapas metálicas perfuradas com o formato autoral Figura 37. Diagrama estrutural Autoria Katia Braz
  • 57.
    47 conforme já explicadono início do capítulo 2, a intenção é compor uma fachada dinâmica e que remetesse a história do bairro. Os bises verticais nas fachadas laterais do edifício têm a função de regular a entrada de luz natural nos espaços destinados a atividades culturais, evitando o excesso de claridade que poderia prejudicar o desempenho dessas atividades. Da mesma forma, os bises na fachada posterior são horizontais para minimizar o impacto da radiação solar, pois é a fachada que recebe uma maior incidência solar quando o sol está mais alto no céu. Esses elementos são fixados diretamente nas estruturas de vigas e pilares do edifício. Figura 38. Brise fachada principal Autoria Katia Braz Figura 39. Refrêndia de brises Fonte: Hunter Douglas
  • 58.
    48 2.4 PEÇAS GRÁFICAS Nestecapítulo, faremos uma apresentação detalhada do projeto do Centro Cultural Mauá, que foi desenvolvido com base na análise realizada neste caderno. Figura 40. Planta do térreo Autoria Katia Braz
  • 59.
    49 Figura 41. Plantado subsolo Autoria Katia Braz
  • 60.
    50 Figura 42. Pavimento1 e 2. Autoria Katia Braz
  • 61.
    51 Figura 43. Pavimento3 e 4. Autoria Katia Braz
  • 62.
    52 Figura 44. Pavimento5 e 6. Autoria Katia Braz
  • 63.
    53 Figura 45. Pavimento7 e 8. Autoria Katia Braz
  • 64.
    54 Figura 46. Pavimento5 e 6. Autoria Katia Braz
  • 65.
    55 Figura 47. CortesAA e BB. Autoria Katia Braz
  • 66.
    56 Figura 48. Corteampliado. Autoria Katia Braz
  • 67.
    57 Figura 49. Fachada1 e 2 Autoria Katia Braz
  • 68.
    58 Figura 50. Fachada3 e 4 Autoria Katia Braz
  • 69.
    59 Figura 51. Fachadaprincipal Autoria Katia Braz
  • 70.
    60 Figura 52. Fachadaposterior Autoria Katia Braz
  • 71.
    61 REFERÊNCIAS ARCHDAILY. Hayy JameelCultural Center. Disponível em: https://www.archdaily.com/978537/hayy-jameel-cultural-center-waiwai. Acesso em: 25 abr. 2023 ARCHDAILY. Nuevo Centro Cultural. Disponível em: https://www.archdaily.cl/cl/609204/nuevo-centro-cultural-fundc. Acesso em: 25 abr. 2023 ARCHDAILY. Pinacoteca de São Paulo. Disponível em: https://www.archdaily.com/894758/pinacoteca-do-estado-de-sao-paulo-paulo- mendes-da-rocha-plus-eduardo-colonelli-plus-weliton-ricoy-torres?ad_source= search&ad_medium=projects_tab. Acesso em: 25 set. 2023 ARCHDAILY. The Whitney Museum. Disponível em: https://www.archdaily.com/630574/the-whitney-museum-of-american-art-at- gansevoort-renzo-piano-cooper-robertson. Acesso em: 25 set. 2023 ARDETE. Edifício Hexalace. Disponível em: https://studioardete.com/project/hexalace/. Acesso em: 25 set. 2023 CENTRO-OESTE. Estrada de ferroa Santos a Jundiaí. Disponível em: http://vfco.brazilia.jor.br/ferrovias/mapas/1965-Estrada-de-Ferro-Santos-a- Jundiai.shtml. Acesso em: 13 out. 2023. CONSÓRCIO ABC. Cultura no grande ABC. Disponível em: https://consorcioabc.sp.gov.br/public/admin/globalarq/uploads/files/Cultura% 20no%20Grande%20ABC.pdf. Acesso em: 25 set. 2023
  • 72.
    62 GEOSAMPA. Contexto Mauá.Disponível em: https://geosampa. prefeitura.sp.gov.br/PaginasPublicas/_SBC.aspx. Acesso em: 25 set. 2023 IBGE. Equipamentos por município. Disponível em: https://cidades.ibge.gov.br/brasil/panorama. Acesso em: 25 set. 2023 IBGE. Panorama do munício de Mauá. Disponível em: https://cidades. ibge.gov.br/brasil/sp/maua/panorama. Acesso em 25 abr. 2023 HUNTER DOUGLAS. Referência Brises. Disponível em: https://architectural.hunterdouglas.com.br/productos/brise-ab/. Acesso em: 25 set. 2023 LINA BO BARDI. Citações de Lina Bo Bardi. ArchDaily Brasil. Disponível em: https://www.archdaily.com.br/br/758509/citacoes-de-lina-bo-bardi. Acessado em: 25 set. 2023 MITSUNAGA. Museu Barão de Mauá Mitsunaga 1980. Pinacoteca municipal de Mauá. Disponível em: https://www.pinacotecamaua.com/acervo/t/ toshiharu-mitsunaga/. Acesso em: 20 set. 2023. MITSUNAGA. Igreja Matriz de Mauá, Mitsunaga, 1986. Pinacoteca municipal de Mauá. Disponível em: https://www.pinacotecamaua.com /acervo/t/toshiharu-mitsunaga/. Acesso em: 20 set. 2023. MITSUNAGA. Paineira 1980, Mitsunaga,2002. Pinacoteca municipal de Mauá. Disponível em: https://www.pinacotecamaua.com/acervo/t/toshiharu-mitsunaga/. Acesso em: 20 set. 2023.
  • 73.
    63 MITSUNAGA. Paineira, Mitsunaga,1990. Pinacoteca municipal de Mauá Disponível em: https://www.pinacotecamaua.com/acervo/t/toshiharu-mitsunaga/. Acesso em: 20 set. 2023. MITSUNAGA. Petroquímica, Mitsunaga, 1999. Pinacoteca municipal de Mauá Disponível em: https://www.pinacotecamaua.com/acervo/t/toshiharu-mitsunaga/. Acesso em: 20 set. 2023. MITSUNAGA. Vila Magini 1985, Mitsunaga, 2001. Pinacoteca municipal de Mauá Disponível em: https://www.pinacotecamaua.com/acervo/t/toshiharu-mitsunaga/. Acesso em: 20 set. 2023. MITSUNAGA. Vista cidade de Mauá, 1984. Pinacoteca municipal de Mauá. Disponível em: https://www.pinacotecamaua.com/acervo/t/toshiharu-mitsunaga/. Acesso em: 20 set. 2023. PLANO DIRETOR MAUÁ. Lei 4.153 de 26 de março de 2007. Disponível em: https://sistemas.maua.sp.gov.br/legislaconsulta/atosofic/Leis/4153.pdf. Acesso em: 25 de abr. de 2023 PLANO DIRETOR MAUÁ. Lei 4.968 de Uso e Ocupação do Solo. Disponível em: https://sistemas.maua.sp.gov.br/legislaconsulta/detalhes.php?nlei=4968&tipolei=0 Acesso em: 25 abr. 2023 PORCELANA BRASIL. Conjunto de peças de porcelana da fábrica Cerqueira Leite. Disponível em: https://porcelanabrasil .blogspot.com/search/label/Cerqueira%20Leite Acesso em 25 set. 2023
  • 74.
    64 PORCELANA BRASIL. FábricaCerâmica Cerqueira Leite. Disponível em: https://porcelanabrasil.blogspot.com/2018/08/industria-ceramica- cerquera-leite-sa.html Acesso em: 25 set. 2023 PREFEITURA DE MAUÁ. Bairro Cerqueira Leite. Disponível em: https://www.maua.sp.gov.br/MapasTematicos/Cerqueira_Leite_Parte2_2_Jardim.pdf Acesso em: 13 out. 2023 PREFEITURA DE MAUÁ. Perfil do município. Disponível em: https://www.maua.sp.gov.br/Informacoes/PerfilAtual.aspx. Acesso em 25 abr. 2023 WEBGIS. Disponível em: http://webgis.maua.sp.gov.br/web/. Acesso em: 25 mai. 2023. WALMETAL. Spider Glass – Fixação Vidros Disponível em: https://walmetal.com.br/obras/. Acesso em 20. set. 2023.