UNINOVE

Rev. B

Engenharia de Avaliações e Perícias
Manutenção Predial e Avaliação de Máquinas
e Equipamentos

16/07/2011
Folha 1/424

UNIVERSIDADE NOVE DE JULHO – UNINOVE
Centro de Pós-Graduação
PÓS-GRADUAÇÃO Lato Sensu
Curso de ENGENHARIA DE AVALIAÇÕES E PERÍCIAS

MANUTENÇÃO PREDIAL E AVALIAÇÃO DE MÁQUINAS E
EQUIPAMENTOS

Marcelo Gandra Falcone

São Paulo
2010

Elaborado por:

Analisado por:

Professor :

Marcelo Gandra Falcone

Alessandra Aparecida Vieira

Marcelo Gandra Falcone

QUANDO IMPRESSO CONSIDERAR PIRATARIA - CÓPIA NÃO AUTORIZADA
UNINOVE

Rev. B

Engenharia de Avaliações e Perícias
Manutenção Predial e Avaliação de Máquinas
e Equipamentos

16/07/2011
Folha 2/424

SUMÁRIO
Inspeção e Manutenção Predial ............................................................................... 10
1) Definições e Conceitos de Inspeção e Manutenção Predial .............................. 10
2) Preceitos Legais .............................................................................................. 16
3) Definições, conceitos, critérios, metodologia e classificações de riscos segundo
as normas vigentes. ............................................................................................. 18
4) Definições de estado de conservação e suas classificações............................... 29
5) Aspectos legais e aplicabilidade. ..................................................................... 30
6) Valorização patrimonial desencadeada por ações de manutenção predial......... 38
7) COMPONENTES DOS LAUDOS E INFORMAÇÕES IMPORTANTES
RELATIVAS À MANUTENÇÃO E INSPEÇÃO PREDIAL. ............................. 42
8) TÓPICOS PARA CHECK-LIST DA MANUTENÇÃO PREDIAL
INTEGRADA. .................................................................................................... 46
9) Orientações técnicas de anomalias................................................................... 61
9.2 Sistema de impermeabilização....................................................................... 77
9.3. Sistema de Revestimentos............................................................................. 82
9.4. SISTEMAS DE PINTURA........................................................................... 89
9.5. Sistemas de Esquadrias................................................................................. 93
9.6. Sistema de instalações elétricas prediais e Sistema de Proteção contra
Descargas Atmosféricas (SPDA) ....................................................................... 106
9.7 Sistema Hidráulico ...................................................................................... 127
9.8 Sistema de Instalações de gás ..................................................................... 146
9.9 Sistema de impermeabilização..................................................................... 153
9.10 Sistema de combate a incêndio ................................................................. 159
9.12 PAISAGISMO ......................................................................................... 241
9.13 Controle de pragas urbanas .................................................................... 252
9.14 Equipamentos de lazer ........................................................................... 272
9.15 Sistema de cobertura.............................................................................. 276
9.16. Acessibilidade e Setorização..................................................................... 280
9.17 Sistema de Condições Sanitárias ............................................................... 283
9.18 Cozinhas Profissionais.............................................................................. 285
9.19 SISTEMAS AUXILIARES ...................................................................... 287
10 - Acessibilidade................................................................................................ 291
10.1 Aplicação da Acessibilidade na Cidade de São Paulo................................. 293
10. 2. Desenho Universal................................................................................... 295
10.3 . Locais de Reunião – Item 8.2 da NBR 9050/04........................................ 304
3) Parte: Avaliação Industrial: Máquinas e Equipamentos ..................................... 316
0. OBJETIVO DA 3ª PARTE:........................................................................... 316
1. A AVALIAÇÃO ........................................................................................... 316
2. PREÇO, CUSTO, MERCADO, VALOR E UTILIDADE.............................. 320
3. LAUDO DE AVALIAÇÃO .......................................................................... 326
4. UNIDADES LEGAIS DE MEDIDA ............................................................. 329
5. TÓPICOS DE MATEMÁTICA FINANCEIRA ............................................ 333
6. CRITÉRIOS PARA DEPRECIAÇÃO FÍSICA DE BENS............................. 336
Elaborado por:

Analisado por:

Professor :

Marcelo Gandra Falcone

Alessandra Aparecida Vieira

Marcelo Gandra Falcone

QUANDO IMPRESSO CONSIDERAR PIRATARIA - CÓPIA NÃO AUTORIZADA
UNINOVE

Rev. B

Engenharia de Avaliações e Perícias
Manutenção Predial e Avaliação de Máquinas
e Equipamentos

16/07/2011
Folha 3/424

7. METODOLOGIAS PARA AVALIAÇÃO DE MÁQUINAS E
EQUIPAMENTOS............................................................................................ 340
8. AUTOS DE AVALIAÇÃO ........................................................................... 355
Referências bibliográficas ..................................................................................... 357
Apêndice 1 - LEGISLAÇÃO PERTINENTE ........................................................ 360
APENDICE 2 - NORMAS ABNT _ NBR POR ASSUNTO:................................. 376
APENDICE 3 - CORPO DE BOMBEIROS .......................................................... 403
APENDICE 4 – NR´s DO MTE ............................................................................ 406
APENDICE 5 – Normas Eng Civil........................................................................ 411

LISTA DE ILUSTRAÇÕES
Figura 1 - Inspeção Predial; in “ASPECTOS PRÁTICOS DA INSPEÇÃO PREDIAL
E MANUTENÇÃO” - autor: Flávia Zoéga Andreatta Pujadas. Apresentação da
ARCHEO Eng. Ass. - Julho/2005 no Primeiro Seminário de Inspeção e
Manutenção Predial da P&M. Fonte http://www.ibapesp.org.br/arquivos/aspectos.pdf ........................................................................... 15
Figura 2 - Finalidades da Inspeção Predial; in “ASPECTOS PRÁTICOS DA
INSPEÇÃO PREDIAL E MANUTENÇÃO” - autor: Flávia Zoéga Andreatta
Pujadas. Apresentação da ARCHEO Eng. Ass. - Julho/2005 no Primeiro Seminário
de Inspeção e Manutenção Predial da P&M. Fonte http://www.ibapesp.org.br/arquivos/aspectos.pdf ........................................................................... 17
Elaborado por:

Analisado por:

Professor :

Marcelo Gandra Falcone

Alessandra Aparecida Vieira

Marcelo Gandra Falcone

QUANDO IMPRESSO CONSIDERAR PIRATARIA - CÓPIA NÃO AUTORIZADA
UNINOVE

Rev. B

Engenharia de Avaliações e Perícias
Manutenção Predial e Avaliação de Máquinas
e Equipamentos

16/07/2011
Folha 4/424

Figura 3 – Fotografia em banheiro de Hotel da Cracolandia em 22/07/2009 ................ 23
Figura 4 - Nivel de Inspeção; in “PALESTRA DE INSPEÇÃO PREDIAL” - autor:
Flávia Zoéga Andreatta Pujadas. Apresentação da ARCHEO Eng. Ass. OUTUBRO/2008 no IBAPE, FORUM DE INSPEÇÃO DE ESTADIOS. Fonte
http://www.ibape-sp.org.br/arquivos/ .................................................................. 24
Figura 5 - Responsabilidades; in “INSPEÇÃO PREDIAL: FERRAMENTA NA
GESTÃO DE ATIVOS” - autor: Flávia Zoéga Andreatta Pujadas. Apresentação da
ARCHEO Eng. Ass. – novembro de 2007 Seminário de Inspeção e Manutenção
Predial CREA AM. Fonte: http://www.crea-am.org.br/src/site/ ........................... 25
Figura 6 - Diagrama das Anomalias; in “INSPEÇÃO PREDIAL: FERRAMENTA NA
GESTÃO DE ATIVOS” - autor: Flávia Zoéga Andreatta Pujadas. Apresentação da
ARCHEO Eng. Ass. – novembro de 2007 Seminário de Inspeção e Manutenção
Predial CREA AM. Fonte: http://www.crea-am.org.br/src/site/ ........................... 26
Figura 7 - Diagrama das Falhas; in “INSPEÇÃO PREDIAL: FERRAMENTA NA
GESTÃO DE ATIVOS” - autor: Flávia Zoéga Andreatta Pujadas. Apresentação da
ARCHEO Eng. Ass. – novembro de 2007 Seminário de Inspeção e Manutenção
Predial CREA AM. Fonte: http://www.crea-am.org.br/src/site/ ........................... 27
Figura 8 - Dados sobre Edificações; in “PALESTRA DE INSPEÇÃO PREDIAL” autor: Flávia Zoéga Andreatta Pujadas. Apresentação da ARCHEO Eng. Ass. OUTUBRO/2008 no IBAPE, FORUM DE INSPEÇÃO DE ESTADIOS. Fonte
http://www.ibape-sp.org.br/arquivos/ .................................................................. 28
Figura 9 – Defeitos endógenos na construção - Aristides Athayde Cordeiro Termo De
Garantia E Manual Da Edificação Curitiba, Sinduscon Pr Janeiro De 2001 fonte
www.sindusconpr.com.br/.../20090401150424Manual_proprietario.doc............. 31
Figura 10 – Vícios aparentes ou de fácil constatação - ARISTIDES ATHAYDE
CORDEIRO TERMO DE GARANTIA E MANUAL DA EDIFICAÇÃO
CURITIBA, SINDUSCON PR JANEIRO DE 2001 fonte
www.sindusconpr.com.br/.../20090401150424Manual_proprietario.doc ... 32
Figura 11– Vícios rebiditórios ou ocultos - ARISTIDES ATHAYDE CORDEIRO
TERMO DE GARANTIA E MANUAL DA EDIFICAÇÃO CURITIBA,
SINDUSCON PR JANEIRO DE 2001 fonte
www.sindusconpr.com.br/.../20090401150424Manual_proprietario.doc ... 32
Figura 12 - Responsabilidades; in “INSPEÇÃO PREDIAL: FERRAMENTA NA
GESTÃO DE ATIVOS” - autor: Flávia Zoéga Andreatta Pujadas. Apresentação da
ARCHEO Eng. Ass. – novembro de 2007 Seminário de Inspeção e Manutenção
Predial CREA AM. Fonte: http://www.crea-am.org.br/src/site/ ........................... 37
Figura 13– Exemplos de falência estrutural em incêndios – Cartilha CONTRU 2,
Prefeitura da Cidade de São Paulo, Secretaria da Habitação Dez 2008................. 37
Figura 14 - Manutenção – Perda de Valor; in “PALESTRA DE INSPEÇÃO
PREDIAL” - autor: Flávia Zoéga Andreatta Pujadas. Apresentação da ARCHEO
Eng. Ass. - OUTUBRO/2008 no IBAPE, FORUM DE INSPEÇÃO DE
ESTADIOS. Fonte http://www.ibape-sp.org.br/arquivos/ .................................... 39
Figura 15 - ; in “PALESTRA DE INSPEÇÃO PREDIAL” - autor: Flávia Zoéga
Andreatta Pujadas. Apresentação da ARCHEO Eng. Ass. - Novembro/200p no
IBAPE, Curso de Inspeção Predial em Estádios de Futebol. Fonte
http://www.ibape-sp.org.br/arquivos/ .................................................................. 40
Elaborado por:

Analisado por:

Professor :

Marcelo Gandra Falcone

Alessandra Aparecida Vieira

Marcelo Gandra Falcone

QUANDO IMPRESSO CONSIDERAR PIRATARIA - CÓPIA NÃO AUTORIZADA
UNINOVE

Rev. B

Engenharia de Avaliações e Perícias
Manutenção Predial e Avaliação de Máquinas
e Equipamentos

16/07/2011
Folha 5/424

Figura 16 - Custos de Manutenção; in “ASPECTOS PRÁTICOS DA INSPEÇÃO
PREDIAL E MANUTENÇÃO” - autor: Flávia Zoéga Andreatta Pujadas.
Apresentação da ARCHEO Eng. Ass. - Julho/2005 no Primeiro Seminário de
Inspeção e Manutenção Predial da P&M. Fonte http://www.ibapesp.org.br/arquivos/aspectos.pdf ........................................................................... 41
Figura 17 - Visão tri-dimensional da Inspeção; in “INSPEÇÃO PREDIAL:
FERRAMENTA NA GESTÃO DE ATIVOS” - autor: Flávia Zoéga Andreatta
Pujadas. Apresentação da ARCHEO Eng. Ass. – novembro de 2007 Fonte:
http://www.crea-am.org.br/src/site/ ..................................................................... 42
Figura 18 – Vistoria Contru 2 ao Teatro Municipal de São Paulo em 24 de setembro de
2008.................................................................................................................... 45
Figura 20 – Vistoria Contru 2 ao Grande Premio São Paulo Indy 300 em 14 de abril de
2009.................................................................................................................... 60
Figura 21 – Vistoria Contru 2 ao Grande Premio São Paulo Indy 300 em 14 de abril de
2009.................................................................................................................... 60
Figura 22 – Esforços Verticais - IBAPE –SP, PUJADAS, F.Z.A.; GOMIDE, T.L.F.;
FAGUNDES, J.C.P. e OUTROS, Inspeção Predial –Check-Up Predial: Guia da
Boa Prevenção. São Paulo: Leud, 2009................................................................ 62
Figura 23 – Esforços Difusos - IBAPE –SP, PUJADAS, F.Z.A.; GOMIDE, T.L.F.;
FAGUNDES, J.C.P. e OUTROS, Inspeção Predial –Check-Up Predial: Guia da
Boa Prevenção. São Paulo: Leud, 2009................................................................ 62
Figura 24 – Fundações - IBAPE –SP, PUJADAS, F.Z.A.; GOMIDE, T.L.F.;
FAGUNDES, J.C.P. e OUTROS, Inspeção Predial –Check-Up Predial: Guia da
Boa Prevenção. São Paulo: Leud, 2009................................................................ 63
Figura 25 – Fundações - IBAPE –SP, PUJADAS, F.Z.A.; GOMIDE, T.L.F.;
FAGUNDES, J.C.P. e OUTROS, Inspeção Predial –Check-Up Predial: Guia da
Boa Prevenção. São Paulo: Leud, 2009................................................................ 63
Figura 26 – Fundações Rasas - IBAPE –SP, PUJADAS, F.Z.A.; GOMIDE, T.L.F.;
FAGUNDES, J.C.P. e OUTROS, Inspeção Predial –Check-Up Predial: Guia da
Boa Prevenção. São Paulo: Leud, 2009................................................................ 64
Figura 27 – Fundações Profundas - IBAPE –SP, PUJADAS, F.Z.A.; GOMIDE, T.L.F.;
FAGUNDES, J.C.P. e OUTROS, Inspeção Predial –Check-Up Predial: Guia da
Boa Prevenção. São Paulo: Leud, 2009................................................................ 64
Figura 28 – Contenções Confrontantes - IBAPE –SP, PUJADAS, F.Z.A.; GOMIDE,
T.L.F.; FAGUNDES, J.C.P. e OUTROS, Inspeção Predial –Check-Up Predial:
Guia da Boa Prevenção. São Paulo: Leud, 2009. ................................................. 65
Figura 29 – Esforços Distribuídos ao longo da Supereficie - IBAPE –SP, PUJADAS,
F.Z.A.; GOMIDE, T.L.F.; FAGUNDES, J.C.P. e OUTROS, Inspeção Predial –
Check-Up Predial: Guia da Boa Prevenção. São Paulo: Leud, 2009..................... 66
Figura 30 – Controle de Lesão - IBAPE –SP, PUJADAS, F.Z.A.; GOMIDE, T.L.F.;
FAGUNDES, J.C.P. e OUTROS, Inspeção Predial –Check-Up Predial: Guia da
Boa Prevenção. São Paulo: Leud, 2009................................................................ 69
Figura 31 – Acomodação da Estrutura - IBAPE –SP, PUJADAS, F.Z.A.; GOMIDE,
T.L.F.; FAGUNDES, J.C.P. e OUTROS, Inspeção Predial –Check-Up Predial:
Guia da Boa Prevenção. São Paulo: Leud, 2009. ................................................. 69
Elaborado por:

Analisado por:

Professor :

Marcelo Gandra Falcone

Alessandra Aparecida Vieira

Marcelo Gandra Falcone

QUANDO IMPRESSO CONSIDERAR PIRATARIA - CÓPIA NÃO AUTORIZADA
UNINOVE

Rev. B

Engenharia de Avaliações e Perícias
Manutenção Predial e Avaliação de Máquinas
e Equipamentos

16/07/2011
Folha 6/424

Figura 32 – Ausência de Verga - IBAPE –SP, PUJADAS, F.Z.A.; GOMIDE, T.L.F.;
FAGUNDES, J.C.P. e OUTROS, Inspeção Predial –Check-Up Predial: Guia da
Boa Prevenção. São Paulo: Leud, 2009................................................................ 70
Figura 33 – Esmagamento - IBAPE –SP, PUJADAS, F.Z.A.; GOMIDE, T.L.F.;
FAGUNDES, J.C.P. e OUTROS, Inspeção Predial –Check-Up Predial: Guia da
Boa Prevenção. São Paulo: Leud, 2009................................................................ 70
Figura 34 – Rotação - IBAPE –SP, PUJADAS, F.Z.A.; GOMIDE, T.L.F.; FAGUNDES,
J.C.P. e OUTROS, Inspeção Predial –Check-Up Predial: Guia da Boa Prevenção.
São Paulo: Leud, 2009......................................................................................... 70
Figura 35 – Escorregamento de Solo - IBAPE –SP, PUJADAS, F.Z.A.; GOMIDE,
T.L.F.; FAGUNDES, J.C.P. e OUTROS, Inspeção Predial –Check-Up Predial:
Guia da Boa Prevenção. São Paulo: Leud, 2009. ................................................. 71
Figura 36 – Erosão nas Fundações - IBAPE –SP, PUJADAS, F.Z.A.; GOMIDE, T.L.F.;
FAGUNDES, J.C.P. e OUTROS, Inspeção Predial –Check-Up Predial: Guia da
Boa Prevenção. São Paulo: Leud, 2009................................................................ 71
Figura 37 – Cisalhamento por esforços externos - IBAPE –SP, PUJADAS, F.Z.A.;
GOMIDE, T.L.F.; FAGUNDES, J.C.P. e OUTROS, Inspeção Predial –Check-Up
Predial: Guia da Boa Prevenção. São Paulo: Leud, 2009...................................... 71
Figura 38 - Vista de uma junta de dilatação estrutural com infiltrações de água, além de
deterioração estrutural. Edifício com aproximadamente 30 anos. ......................... 74
Figura 39 – Queda parcial de Parede estrutural – Foto Contru 2 .................................. 81
Figura 40 – IBAPE –SP, PUJADAS, F.Z.A.; GOMIDE, T.L.F.; FAGUNDES, J.C.P. e
OUTROS, Inspeção Predial –Check-Up Predial: Guia da Boa Prevenção. São
Paulo: Leud, 2009. .............................................................................................. 87
Figura 41 – Revestimento Interno de Edificação Comercial em São Paulo – Foto Contru
2 - 2010.............................................................................................................. 88
Figura 42 – Pintura Artística em Edificação em São Paulo – Foto Contru 2 - 2008...... 92
Figura 43 –Esquadrias- IBAPE –SP, PUJADAS, F.Z.A.; GOMIDE, T.L.F.;
FAGUNDES, J.C.P. e OUTROS, Inspeção Predial –Check-Up Predial: Guia da
Boa Prevenção. São Paulo: Leud, 2009................................................................ 94
Figura 44 – Esquadrias - IBAPE –SP, PUJADAS, F.Z.A.; GOMIDE, T.L.F.;
FAGUNDES, J.C.P. e OUTROS, Inspeção Predial –Check-Up Predial: Guia da
Boa Prevenção. São Paulo: Leud, 2009................................................................ 95
Figura 45 – Entrada de energia - IBAPE –SP, PUJADAS, F.Z.A.; GOMIDE, T.L.F.;
FAGUNDES, J.C.P. e OUTROS, Inspeção Predial –Check-Up Predial: Guia da
Boa Prevenção. São Paulo: Leud, 2009.............................................................. 106
Figura 46 – Distribuição de Energia - IBAPE –SP, PUJADAS, F.Z.A.; GOMIDE,
T.L.F.; FAGUNDES, J.C.P. e OUTROS, Inspeção Predial –Check-Up Predial:
Guia da Boa Prevenção. São Paulo: Leud, 2009. ............................................... 107
Figura 47 – Grandes Incêndios de São Paulo............................................................. 108
Figura 48 – “Gambiarras” – Cartilha do CONTRU em SCI....................................... 111
Figura 48 - Benjamin - IBAPE –SP, PUJADAS, F.Z.A.; GOMIDE, T.L.F.;
FAGUNDES, J.C.P. e OUTROS, Inspeção Predial –Check-Up Predial: Guia da
Boa Prevenção. São Paulo: Leud, 2009.............................................................. 117
Figura 49 – Tipo de para raios – Cartilha do CONTRU em SCI ............................... 121
Elaborado por:

Analisado por:

Professor :

Marcelo Gandra Falcone

Alessandra Aparecida Vieira

Marcelo Gandra Falcone

QUANDO IMPRESSO CONSIDERAR PIRATARIA - CÓPIA NÃO AUTORIZADA
UNINOVE

Rev. B

Engenharia de Avaliações e Perícias
Manutenção Predial e Avaliação de Máquinas
e Equipamentos

16/07/2011
Folha 7/424

Figura 50 – SPDA - IBAPE –SP, PUJADAS, F.Z.A.; GOMIDE, T.L.F.; FAGUNDES,
J.C.P. e OUTROS, Inspeção Predial –Check-Up Predial: Guia da Boa Prevenção.
São Paulo: Leud, 2009....................................................................................... 122
Figura 51 – Principiuos de Drenagem - IBAPE –SP, PUJADAS, F.Z.A.; GOMIDE,
T.L.F.; FAGUNDES, J.C.P. e OUTROS, Inspeção Predial –Check-Up Predial:
Guia da Boa Prevenção. São Paulo: Leud, 2009. ............................................... 130
Figura 52 – Ramais de esgoto - IBAPE –SP, PUJADAS, F.Z.A.; GOMIDE, T.L.F.;
FAGUNDES, J.C.P. e OUTROS, Inspeção Predial –Check-Up Predial: Guia da
Boa Prevenção. São Paulo: Leud, 2009.............................................................. 131
Figura 53 – Cuidados com a Limpeza da Caixa dágua site sabesp em 09/2010. ......... 140
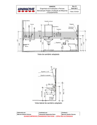
Figura 54 –Pia- IBAPE –SP, PUJADAS, F.Z.A.; GOMIDE, T.L.F.; FAGUNDES,
J.C.P. e OUTROS, Inspeção Predial –Check-Up Predial: Guia da Boa Prevenção.
São Paulo: Leud, 2009....................................................................................... 143
Figura 55 –Torneira- IBAPE –SP, PUJADAS, F.Z.A.; GOMIDE, T.L.F.; FAGUNDES,
J.C.P. e OUTROS, Inspeção Predial –Check-Up Predial: Guia da Boa Prevenção.
São Paulo: Leud, 2009....................................................................................... 144
Figura 56 – Chuveiro- IBAPE –SP, PUJADAS, F.Z.A.; GOMIDE, T.L.F.;
FAGUNDES, J.C.P. e OUTROS, Inspeção Predial –Check-Up Predial: Guia da
Boa Prevenção. São Paulo: Leud, 2009.............................................................. 144
Figura 57 – GLP – Recomendações da Cartilha do CONTRU. .................................. 151
Figura 58 –recomendações de Contratação –SP, PUJADAS, F.Z.A.; GOMIDE, T.L.F.;
FAGUNDES, J.C.P. e OUTROS, Inspeção Predial –Check-Up Predial: Guia da
Boa Prevenção. São Paulo: Leud, 2009.............................................................. 158
Figura 59 – Ventilação - IBAPE –SP, PUJADAS, F.Z.A.; GOMIDE, T.L.F.;
FAGUNDES, J.C.P. e OUTROS, Inspeção Predial –Check-Up Predial: Guia da
Boa Prevenção. São Paulo: Leud, 2009.............................................................. 161
Figura 59 –Escadas- IBAPE –SP, PUJADAS, F.Z.A.; GOMIDE, T.L.F.; FAGUNDES,
J.C.P. e OUTROS, Inspeção Predial –Check-Up Predial: Guia da Boa Prevenção.
São Paulo: Leud, 2009....................................................................................... 166
Figura 60 – Escadas- IBAPE –SP, PUJADAS, F.Z.A.; GOMIDE, T.L.F.; FAGUNDES,
J.C.P. e OUTROS, Inspeção Predial –Check-Up Predial: Guia da Boa Prevenção.
São Paulo: Leud, 2009....................................................................................... 167
Figura 61 –Escadas- IBAPE –SP, PUJADAS, F.Z.A.; GOMIDE, T.L.F.; FAGUNDES,
J.C.P. e OUTROS, Inspeção Predial –Check-Up Predial: Guia da Boa Prevenção.
São Paulo: Leud, 2009....................................................................................... 167
Figura 62 –Escadas- IBAPE –SP, PUJADAS, F.Z.A.; GOMIDE, T.L.F.; FAGUNDES,
J.C.P. e OUTROS, Inspeção Predial –Check-Up Predial: Guia da Boa Prevenção.
São Paulo: Leud, 2009....................................................................................... 168
Figura 63 –Escadas- IBAPE –SP, PUJADAS, F.Z.A.; GOMIDE, T.L.F.; FAGUNDES,
J.C.P. e OUTROS, Inspeção Predial –Check-Up Predial: Guia da Boa Prevenção.
São Paulo: Leud, 2009....................................................................................... 168
Figura 64 –Escadas- IBAPE –SP, PUJADAS, F.Z.A.; GOMIDE, T.L.F.; FAGUNDES,
J.C.P. e OUTROS, Inspeção Predial –Check-Up Predial: Guia da Boa Prevenção.
São Paulo: Leud, 2009....................................................................................... 169

Elaborado por:

Analisado por:

Professor :

Marcelo Gandra Falcone

Alessandra Aparecida Vieira

Marcelo Gandra Falcone

QUANDO IMPRESSO CONSIDERAR PIRATARIA - CÓPIA NÃO AUTORIZADA
UNINOVE

Rev. B

Engenharia de Avaliações e Perícias
Manutenção Predial e Avaliação de Máquinas
e Equipamentos

16/07/2011
Folha 8/424

Figura 65 –Escadas- IBAPE –SP, PUJADAS, F.Z.A.; GOMIDE, T.L.F.; FAGUNDES,
J.C.P. e OUTROS, Inspeção Predial –Check-Up Predial: Guia da Boa Prevenção.
São Paulo: Leud, 2009....................................................................................... 169
Figura 66 –Escadas- IBAPE –SP, PUJADAS, F.Z.A.; GOMIDE, T.L.F.; FAGUNDES,
J.C.P. e OUTROS, Inspeção Predial –Check-Up Predial: Guia da Boa Prevenção.
São Paulo: Leud, 2009....................................................................................... 171
Figura 67 –Escadas- IBAPE –SP, PUJADAS, F.Z.A.; GOMIDE, T.L.F.; FAGUNDES,
J.C.P. e OUTROS, Inspeção Predial –Check-Up Predial: Guia da Boa Prevenção.
São Paulo: Leud, 2009....................................................................................... 171
Figura 68 –Extintores - IBAPE –SP, PUJADAS, F.Z.A.; GOMIDE, T.L.F.;
FAGUNDES, J.C.P. e OUTROS, Inspeção Predial –Check-Up Predial: Guia da
Boa Prevenção. São Paulo: Leud, 2009.............................................................. 181
Figura 69 –Uso de Extintores – Cartilha do CONTRU. ............................................. 182
Figura 70 – Hidrantes e Mangotinhos – Cartilha do Contru. ...................................... 183
Figura 71 – Hidrantes - IBAPE –SP, PUJADAS, F.Z.A.; GOMIDE, T.L.F.;
FAGUNDES, J.C.P. e OUTROS, Inspeção Predial –Check-Up Predial: Guia da
Boa Prevenção. São Paulo: Leud, 2009.............................................................. 185
Figura 72 Sensor misto Fumaça e Temperatura – Fotografia CONTRU 2010............ 186
Figura 73 – Bloco autônomo desligado da tomada..................................................... 189
Figura 76 –Elevador convencional- IBAPE –SP, PUJADAS, F.Z.A.; GOMIDE, T.L.F.;
FAGUNDES, J.C.P. e OUTROS, Inspeção Predial –Check-Up Predial: Guia da
Boa Prevenção. São Paulo: Leud, 2009.............................................................. 209
Figura 77 – Elevador Hidráulico - IBAPE –SP, PUJADAS, F.Z.A.; GOMIDE, T.L.F.;
FAGUNDES, J.C.P. e OUTROS, Inspeção Predial –Check-Up Predial: Guia da
Boa Prevenção. São Paulo: Leud, 2009.............................................................. 210
Figura 78 –Casa de Maquinas - Fotos CONTRU 2010. ............................................ 217
FIGURA – (PRAGAS Urbanas. Disponível em http://www.pragas.com.br. Acesso em:
08 abril 2004).................................................................................................... 255
FIGURA – (PRAGAS Urbanas. Disponível em http://www.pragas.com.br. Acesso em:
08 abril 2004).................................................................................................... 258
FIGURA – (PRAGAS Urbanas. Disponível em http://www.pragas.com.br. Acesso em:
08 abril 2004).................................................................................................... 259
FIGURA – (PRAGAS Urbanas. Disponível em http://www.pragas.com.br. Acesso em:
08 abril 2004).................................................................................................... 260

Elaborado por:

Analisado por:

Professor :

Marcelo Gandra Falcone

Alessandra Aparecida Vieira

Marcelo Gandra Falcone

QUANDO IMPRESSO CONSIDERAR PIRATARIA - CÓPIA NÃO AUTORIZADA
UNINOVE

Rev. B

Engenharia de Avaliações e Perícias
Manutenção Predial e Avaliação de Máquinas
e Equipamentos

16/07/2011
Folha 9/424

LISTA DE ABREVIATURAS E SIGLAS

























ABNT: Associação Brasileira de Normas Técnicas
ART: Anotação de Responsabilidade Técnica
AVCB:Auto de Verificação do Corpo De Bombeiros
AVS: Auto de Verificação e Segurança
COE: Código de Obras e Edificações do Município de São Paulo
CREA: Circunscrição Regional de Engenharia, Arquitetura e Agronomia.
DE: Decreto Estadual nº 38.069, 14/12/93
DM: Decreto Municipal nº 32.329, de 23/09/92
EPUSP: Escola Politécnica da Universidade de São Paulo
FAU: Faculdade de Arquitetura e Urbanismo da Universidade de São Paulo
FICAM: Ficha de Inscrição no Cadastro de Manutenção de Sistema de
Segurança
IBAPE/SP: Instituto Brasileiro de Avaliações e Perícias de Engenharia de
São Paulo
IBC: International Building Code
ICBO: International Conference of Buildings Officials
IT: Instrução Técnica do Corpo de Bombeiros do Estado de São Paulo
NBR: Normas Brasileiras Registradas
NFIRS: National Fire Incident Reporting System (EUA)
NFPA: National Fire Protection Association
NR: Norma Regulamentadora do Ministério do Trabalho e Emprego
PPRA: Programa de Prevenção de Riscos Ambientais
RIA: Relatório de Inspeção Anual de elevadores
SPDA: Atestado do Sistema de Proteção a Descarga Atmosférica
UBC: Uniform Building Code
UFC: Uniform Fire Code

Elaborado por:

Analisado por:

Professor :

Marcelo Gandra Falcone

Alessandra Aparecida Vieira

Marcelo Gandra Falcone

QUANDO IMPRESSO CONSIDERAR PIRATARIA - CÓPIA NÃO AUTORIZADA
UNINOVE

Rev. B

Engenharia de Avaliações e Perícias
Manutenção Predial e Avaliação de Máquinas
e Equipamentos

16/07/2011
Folha 10/424

Inspeção e Manutenção Predial
Definições e conceitos de Inspeção e manutenção predial.
 Preceitos Legais
 Definições, conceitos, critérios, metodologia e classificações de riscos
segundo as normas vigentes.
 Definições de estado de conservação e suas classificações.
 Aspectos legais e aplicabilidade.
 Valorização patrimonial desencadeada por ações de manutenção predial
 Componentes dos laudos e informações importantes relativas à
manutenção e inspeção predial.
 Tópicos para check-list da manutenção predial integrada.
 Orientações técnicas de anomalias.
 Acessibilidade.
1) Definições e Conceitos de Inspeção e Manutenção Predial

Vistoria: “Constatação local de fatos, mediante
observações criteriosas em um bem e nos elementos e
condições que o constituem ou o influenciam”.
(NBR 14653-1: Avaliação de bens, da ABNT).
Perícia: “Atividade técnica realizada por profissional com
qualificação específica, para averiguar e esclarecer fatos,
verificar o estado de um bem, apurar as causas que
motivaram determinado evento, avaliar bens, seus custos,
frutos ou direitos”.
(NBR 14653-1: Avaliação de bens, da ABNT).
Inspeção: “Avaliação do estado da edificação e de suas
partes constituintes, realizada para orientar as atividades
de manutenção”.
(NBR 5674/99: Manutenção de Edificações, da ABNT).
Manutenção “Conjunto de atividades a serem realizadas
para conservar ou recuperar a capacidade funcional da
edificação e de suas partes constituintes a fim de atender
as necessidades e segurança dos seus usuários”.
(NBR 5674/99: Manutenção de Edificações, da ABNT).
Manual de operação, uso e manutenção “Documento que
reúne apropriadamente todas as informações necessárias
para orientar as atividades de operação, uso e
manutenção da edificação”.
(NBR 5674/99: Manutenção de Edificações, da ABNT).
Elaborado por:

Analisado por:

Professor :

Marcelo Gandra Falcone

Alessandra Aparecida Vieira

Marcelo Gandra Falcone

QUANDO IMPRESSO CONSIDERAR PIRATARIA - CÓPIA NÃO AUTORIZADA
UNINOVE

Rev. B

Engenharia de Avaliações e Perícias
Manutenção Predial e Avaliação de Máquinas
e Equipamentos

16/07/2011
Folha 11/424

Manutenção são todas as ações necessárias para que um componente,
equipamento ou sistema seja conservado ou restaurado, de modo a poder
permanecer de acordo com uma condição especificada. A manutenção tem a
função de assegurar que todos os ativos cumpram e continuem cumprindo as
funções para as quais foram especificadas. A gerência da manutenção é a
gestão de todos os ativos, visando a maximização do retorno do investimento
nestes ativos.
Em linhas gerais podemos dizer que o conjunto de atividades e recursos
direcionados para conservar e recuperar sistemas e elementos construtivos,
dentro de parâmetros previstos em projeto, em conformidade com as
expectativas de usuários e sua segurança. Das características da Manutenção,
destacam-se aquelas ligadas aos seus objetivos básicos de recuperação e
conservação estes parâmetros são relativos a questões de:
 desempenho,
 vida útil,
 funcionalidade,
 operacionalidade,
 disponibilidade e
 confiabilidade de sistemas e elementos construtivos
Dentre essas, afirmamos que a Manutenção não tem como finalidade principal
à alteração de uso da edificação à execução de reformas e/ou alterações de
sistemas, devido a problemas de concepção ou execução dos
empreendimentos.
Entretanto nesse sentido, ainda, a Manutenção pode prever e sugerir aspectos
de inovações tecnológicas e/ou funcionais, incorrendo em modificações e
reformas – modernizações e benfeitorias – a fim de garantir aspectos de
vantagem competitiva, econômica, segurança e atendimento as necessidades
e expectativas de usuários, normas e legislação. Podemos por exemplo através
de observações advindas da boa manutenção racionalizar o uso dos recursos
naturais e a preocupação com questões de impacto ambiental e urbano.
A Norma da ABNT, NBR 5674- Manutenção de edificações – Procedimentos,
que define vários procedimentos para o Sistema de Manutenção. Na introdução
desta Norma, já existe alerta para a necessidade da Manutenção, pois “as
edificações são o suporte físico para a realização direta ou indireta de todas
atividades produtivas, e possuem, portanto, um valor social fundamental.”
Ainda importante é a visão de longevidade e durabilidade das edificações.
Dispõe a Norma: “é inviável sob o ponto de vista econômico e inaceitável sob o
ponto de vista ambiental considerar as edificações como produtos
descartáveis, passíveis da simples substituição por novas construções quando
seu desempenho atinge níveis inferiores ao exigido pelos seus usuários”.

Elaborado por:

Analisado por:

Professor :

Marcelo Gandra Falcone

Alessandra Aparecida Vieira

Marcelo Gandra Falcone

QUANDO IMPRESSO CONSIDERAR PIRATARIA - CÓPIA NÃO AUTORIZADA
UNINOVE

Rev. B

Engenharia de Avaliações e Perícias
Manutenção Predial e Avaliação de Máquinas
e Equipamentos

16/07/2011
Folha 12/424

A Norma da ABNT, NBR 14653-1: Avaliação de bens - Procedimentos gerais,
classificam os bens em tangíveis e intangíveis, nesta parte do curso o foco será
os bens tangíveis. Dentre os bens tangíveis que serão objetos deste curso,
destacam-se entre outros, imóveis, máquinas, equipamentos, veículos,
mobiliário e utensílios, acessórios, matérias-primas e outras mercadorias, infraestruturas, instalações, recursos naturais, recursos ambientais. Quanto aos
intangíveis, destacam-se entre outros, empreendimentos de base imobiliária,
industrial ou rural, fundos de comércio, marcas e patentes.
Os Relatórios e Laudos de Vistoria Técnica deverão ser elaborados segundo
as disposições da NBR 13.752/96 da ABNT e serem acompanhados da
respectiva Anotação de Responsabilidade Técnica – ART.
A Vistoria Técnica deverá contemplar um diagnóstico geral do estado de
conservação e/ou grau de urgência da correção das anomalias identificadas
nas edificações / equipamentos públicos e privados; os pontos sujeitos a
recuperação, reparos, restauro, reforma, manutenção ou substituição; as
medidas saneadoras a serem utilizadas e suas respectivas metodologias; os
prazos máximos para conclusão das medidas saneadoras.
Na Prefeitura Municipal de São Paulo o Técnico deve atender ao DECRETO
41.534 – 20/12/2001:
“Art. 4. - O servidor que integrar o corpo fiscalizador será responsável
por todos os atos praticados no decorrer da ação fiscalizatória e, em
especial, pelos dados consignados em autos, relatórios, termos e outros
documentos equivalentes.
Art. 9. - Nenhum agente fiscalizador poderá exercer suas atribuições
sem exibir documento de identificação fornecido pela Administração
Municipal, devendo ser-lhe permitido imediato ingresso no local objeto
da vistoria”.
As Vistoria Técnica são realizadas por solicitação, por denuncia, ou nos
processos de Autorização, Alvarás, Revalidação de Alvarás (nestes casos o
técnico analisa junto com a chefia a necessidade de vistoria técnica).
Por recomendação é interessante que o inspetor tome alguns cuidados em
analogia ao Auditor da qualidade / ambiental, e para tanto basta usar a Norma
NBR ISO 19011 - Diretrizes para auditorias de sistema de gestão da qualidade
e/ou ambiental, em seu capitulo 6 – Atividades de Auditoria , fornece orientação
sobre a realização das auditorias de sistemas de gestão da qualidade e/ou
ambiental, incluindo a seleção de equipes de auditoria. No lugar de auditor
basta ler “Inspetor” e no lugar de equipe auditora equipe de inspetores
multidisciplinar sem esquecer que a realização das vistorias de engenharia ou
inspeções prediais é de responsabilidade e da exclusiva competência dos
profissionais, Engenheiros e Arquitetos, legalmente habilitados pelos
Conselhos Regionais de Engenharia, Arquitetura e Agronomia CREA, de
Elaborado por:

Analisado por:

Professor :

Marcelo Gandra Falcone

Alessandra Aparecida Vieira

Marcelo Gandra Falcone

QUANDO IMPRESSO CONSIDERAR PIRATARIA - CÓPIA NÃO AUTORIZADA
UNINOVE

Rev. B

Engenharia de Avaliações e Perícias
Manutenção Predial e Avaliação de Máquinas
e Equipamentos

16/07/2011
Folha 13/424

acordo com a Lei Federal nº 5.194, de 21 de dezembro de 1966, e resoluções
do Confea. Recomenda-se equipe multidisciplinar mínima, formada por
Engenheiro Civil ou Arquiteto e Engenheiro Eletricista, com formação
profissional plena e comprovada mediante a apresentação de Acervo Técnico
registrado pelo Sistema Confea/Crea.

Reescrevendo a Norma NBR ISO 19011 capitulo 4, transformando auditoria em
perícia teremos os seguintes princípios relacionados a Inspetores e Peritos:
a) Conduta ética: o fundamento do profissionalismo. Confiança,
integridade, confidencialidade e discrição são essenciais para diligenciar
e elaborar os Laudos.
b) Apresentação justa: a obrigação de reportar com veracidade e exatidão.
Constatações de vistorias, conclusões de vistorias e os Laudos refletem
verdadeiramente e com precisão as atividades da diligencia. Obstáculos
significantes encontrados durante a diligencia e opiniões divergentes
não resolvidas entre a equipe de vistoria e o vistoriado deverão ser
relatadas.
c) Devido cuidado profissional: a aplicação de diligência e julgamento no
relatório / Laudo Auditores pratiquem o cuidado necessário
considerando a importância da tarefa que eles executam e a confiança
colocada neles pelos clientes de auditoria e outras partes interessadas.
Ter a competência necessária é um fator importante. Outros princípios
se relacionam à auditoria, que é por definição independente e
sistemática.
d) Independência: a base para a imparcialidade da vistoria e objetividade
das conclusões. Os peritos deverão ser preferencialmente
independentes, ou seja, não ter nenhum comprometimento com a
edificação ou pessoas que sobre ela representam algum interesse,
ficando assim livres de tendência e conflito de interesse. Peritos devem
mantêr um estado de mente aberta ao longo do processo de vistoria
para assegurar que as constatações e conclusões serão baseadas
somente nas evidências objetivas constatadas e ou consignadas.
e) Abordagem baseada em evidência: o método racional para alcançar
conclusões de vistorias confiáveis e reproduzíveis em um processo
sistemático de perícia. Evidência de vistoria tem que ser verificável. É
baseada em amostras das informações disponíveis, uma vez que uma
vistoria é realizada durante um período finito de tempo e com recursos
finitos. O uso apropriado de amostragem está intimamente relacionado
com a confiança que pode ser colocada nas conclusões e nos laudos.
Para atuar como perito judicial não é necessário prestar concurso público ou
realizar pós-graduação, nem estar vinculado a alguma instituição ou emprego
oficial. A atividade é de perito judicial é semelhante a do profissional liberal.
Elaborado por:

Analisado por:

Professor :

Marcelo Gandra Falcone

Alessandra Aparecida Vieira

Marcelo Gandra Falcone

QUANDO IMPRESSO CONSIDERAR PIRATARIA - CÓPIA NÃO AUTORIZADA
UNINOVE

Rev. B

Engenharia de Avaliações e Perícias
Manutenção Predial e Avaliação de Máquinas
e Equipamentos

16/07/2011
Folha 14/424

Podem ser peritos: os aposentados, os profissionais liberais, os funcionários
públicos e os empregados de empresas em geral, desde que suas profissões
sejam de curso superior na área de perícia a ser realizada, como as dos:
administradores, contadores, economistas, engenheiros, médicos, profissionais
ligados ao meio ambiente, profissionais da área de informática, químicos,
agrônomos, biólogos arquitetos, entre outras.
A realização da Inspeção Predial é de responsabilidade técnica e competência
dos profissionais, engenheiros civis e arquitetos, legalmente habilitados junto
ao Conselho Regional de Engenharia, Arquitetura e podendo, em função da
especificidade do serviço, ser envolvido outros profissionais habilitados –
engenheiros eletricistas, engenheiros mecânicos e engenheiros com
especialização em segurança do trabalho, que darão continuidade ao
desenvolvimento de novos trabalhos. Em linhas gerais, a inspeção analisa as
condições de habitabilidade, laboração, ocupação, hospedagem, verificando
quanto a condições da estrutura, saúde, segurança contra incêndio, pânico e
instalações elétricas, hidráulicas e sanitárias.
A norma NBR 14.037 de março de 1998 tem por objetivo delinear o Manual de
operação, uso e manutenção das edificações, seu conteúdo e recomendações
para elaboração e apresentação do mesmo. O manual de operação, uso e
manutenção é o documento que reúne apropriadamente todas as informações
necessárias para orientar as atividades de operação, uso e manutenção da
edificação. É também o objeto de atenção desta Norma as Técnicas de
avaliação pós-ocupação (APC), que têm sido utilizadas para retomar às etapas
de projeto e execução as informações sobre as condições reais de apropriação
pelos usuários do espaço construído, identificadas a partir de observações das
etapas de operação, uso e manutenção. A qualificação da documentação
técnica produzida ao longo das etapas de projeto e execução e seu
direcionamento para esclarecer dúvidas relativas es etapas de operação, uso e
manutenção, sistematizada na forma de manuais de operação, uso e
manutenção das edificações tem sido outro instrumento para melhorar a
comunicação no processo.
O Manual deve apresentar informações sobre procedimentos recomendáveis
para inspeções técnicas da edificação. contendo:
a) definição da freqüência de inspeções necessárias para componentes,
instalações e equipamentos da edificação e da qualificação técnica
necessária do responsável pela atividade de inspeção;
b) definição de roteiros de inspeções na edificação, com destaque para a
observação de itens relacionados à segurança e salubridade, ou críticos
ao funcionamento da edificação, descrevendo as condições especiais de
acesso necessárias a todos os componentes, instalações e
equipamentos não diretamente acessáveis, como a utilização de
escadas, andaimes. equipamentos especiais de iluminação e ventilação,
etc.
Elaborado por:

Analisado por:

Professor :

Marcelo Gandra Falcone

Alessandra Aparecida Vieira

Marcelo Gandra Falcone

QUANDO IMPRESSO CONSIDERAR PIRATARIA - CÓPIA NÃO AUTORIZADA
UNINOVE

Rev. B

Engenharia de Avaliações e Perícias
Manutenção Predial e Avaliação de Máquinas
e Equipamentos

16/07/2011
Folha 15/424

O Manual deve apresentar informações sobre procedimentos recomendáveis
para a manutenção da edificação, contendo:
a) a especificação de procedimentos gerais de manutenção para a
edificação como um todo e procedimentos específicos para a
manutenção de componentes, instalações e equipamentos;
b) a especificação de um programa de manutenção preventiva de
componentes, instalações e equipa mentos relacionados à segurança e
salubridade da edificação;
c) a identificação de componentes da edificação mais importantes em
relação à freqüência ou riscos decorrentes da falta de manutenção,
descrevendo as conseqüências prováveis da não realização das
atividades de manutenção;
d) a recomendação da obrigatória revisão do Manual de operação, uso e
manutenção quando da realização de modificações na edificação em
relação ao originalmente construído e documentado no Manual.
De acordo com o SINDUSCON do Paraná, O Manual da Edificação faz parte
das garantias oferecidas pelo Construtor ao adquirente ou usuário do imóvel,
em decorrência do estabelecido no Código de Defesa do Consumidor, CDC,
artigo 50 e seu parágrafo único:
“Art. 50 - A garantia contratual é complementar à legal e será conferida
mediante termo escrito.
Parágrafo único - O termo de garantia ou equivalente deve ser padronizado e
esclarecer, de maneira adequada, em que consiste a mesma garantia, bem
como a forma, o prazo e o lugar em que pode ser exercitada e os ônus a cargo
do consumidor, devendo ser-lhe entregue, devidamente preenchido pelo
fornecedor, no ato do fornecimento, acompanhado de manual de instrução, de
instalação e uso de produto em linguagem didática, com ilustrações”

Figura 1 - Inspeção Predial; in “ASPECTOS PRÁTICOS DA INSPEÇÃO PREDIAL E MANUTENÇÃO” - autor: Flávia Zoéga
Andreatta Pujadas. Apresentação da ARCHEO Eng. Ass. - Julho/2005 no Primeiro Seminário de Inspeção e Manutenção
Predial da P&M. Fonte http://www.ibape-sp.org.br/arquivos/aspectos.pdf
Elaborado por:

Analisado por:

Professor :

Marcelo Gandra Falcone

Alessandra Aparecida Vieira

Marcelo Gandra Falcone

QUANDO IMPRESSO CONSIDERAR PIRATARIA - CÓPIA NÃO AUTORIZADA
UNINOVE

Rev. B

Engenharia de Avaliações e Perícias
Manutenção Predial e Avaliação de Máquinas
e Equipamentos

16/07/2011
Folha 16/424

2) Preceitos Legais
































Lei Federal Nº. 5.194 de 21/12/1966 que regula o exercício das
profissões de Engenheiro, Arquiteto e Engenheiro Agrônomo e dá outras
providências;
Lei 6.496/77 - Institui a ART na prestação de serviços de engenharia,
arquitetura e agronomia e dá outras providências;
Lei 9636/98 Dispõe sobre regularização , administração, aforamento e
alienação de bens imóveis de domínio da União e dá outras
providências;
Lei 10406/02 - Novo Código Civil Brasileiro.
Resoluções do Conselho Federal de Engenharia, Arquitetura e
Agronomia, e particularmente:
o Resolução Nº. 205, de 30/09/1971, que adota o Código de Ética
Profissional;
o Resolução Nº. 218, de 27/06/1973, que fixa as atribuições do
Engenheiro, Arquiteto e Agrônomo nas diversas modalidades;
o Resolução Nº. 345, de 27/07/1990, que dispõe quanto ao
exercício por profissionais de nível superior das atividades de
Engenharia de Avaliações e Perícias de Engenharia;
Resolução/CEUSO/54/89 - CEUSO de 22/11/89;
Resolução 1010 do Confea
Código de ética do IBAPE
Lei nº 10.671 de 15 de março de 2005, Estatuto do Torcedor, art. 23º
Decreto Federal no 6.795, de 16 de março de 2009, que regulamenta o
art. 23o da Lei 10.671
Portaria do Ministério dos Esportes no 124 de 17 de julho de 2009, que
estabelece os requisitos mínimo a serem contemplados nos laudos
técnicos previstos no Decreto Federal no 6.795
Código de obras e Edificações (COE);
Leis Complementares ao COE;
Decreto 24714 de 7/10/87, 27.011 de 30/09/88;
Decreto 24767 de 14/10/87 - Regulamenta o sistema de fiscalização,
disposições gerais para utilização de gás combustível n os edifícios e
construções em geral;
Portaria n° 2364/SAR/88 - publicada no DOM de 29/9/88
Relatório de Danos ambientais
Licença da Vigilância Sanitária
Leis de Ocupação, Parcelamento e Uso do Solo;
Constituição Federal;
Código Civil;
Código de Processo Civil;
Código Penal;
Código Comercial;
Código de Águas;

Elaborado por:

Analisado por:

Professor :

Marcelo Gandra Falcone

Alessandra Aparecida Vieira

Marcelo Gandra Falcone

QUANDO IMPRESSO CONSIDERAR PIRATARIA - CÓPIA NÃO AUTORIZADA
UNINOVE

Engenharia de Avaliações e Perícias
Manutenção Predial e Avaliação de Máquinas
e Equipamentos
















Rev. B
16/07/2011
Folha 17/424

Código de Defesa do Consumidor;
Código Sanitário Estadual;
Legislação Ambiental;
Código Florestal;
ABNT NBR 12721:1999 Avaliação de custos unitários e preparo de
orçamento de construção para incorporação de edifícios em condomínio
Procedimento
ABNT NBR 14653-1:2001 Avaliação de bens Parte 1: Procedimentos
gerais
ABNT NBR 14653-2:2004 Avaliação de bens Parte 2: Imóveis urbanos
ABNT NBR 14653-3:2004 Avaliação de bens Parte 3: Imóveis rurais
ABNT NBR 14653-4:2002 Avaliação de bens - Parte 4:
Empreendimentos
ABNT NBR 14653-5:2006 Avaliação de bens - Parte 5: Maquinas e
Equipamentos
Norma Básica de Perícias em Engenharia do IBAPE/SP
Glossário de Terminologia Aplicável à Engenharia de Avaliações e
Perícias IBAPE/SP-2002
Normas Técnicas Oficiais (NTO):

Figura 2 - Finalidades da Inspeção Predial; in “ASPECTOS PRÁTICOS DA INSPEÇÃO PREDIAL E MANUTENÇÃO” autor: Flávia Zoéga Andreatta Pujadas. Apresentação da ARCHEO Eng. Ass. - Julho/2005 no Primeiro Seminário de
Inspeção e Manutenção Predial da P&M. Fonte http://www.ibape-sp.org.br/arquivos/aspectos.pdf

Elaborado por:

Analisado por:

Professor :

Marcelo Gandra Falcone

Alessandra Aparecida Vieira

Marcelo Gandra Falcone

QUANDO IMPRESSO CONSIDERAR PIRATARIA - CÓPIA NÃO AUTORIZADA
UNINOVE

Rev. B

Engenharia de Avaliações e Perícias
Manutenção Predial e Avaliação de Máquinas
e Equipamentos

16/07/2011
Folha 18/424

3) Definições, conceitos, critérios, metodologia e classificações de
riscos segundo as normas vigentes.

A INSPEÇÃO PREDIAL, tema atual e de grande importância à sociedade, está
sendo discutido e estudado em diversos segmentos do mercado imobiliário,
sejam construtoras, incorporadoras, administradoras de condomínios,
instituições.
Assim como o ser humano necessita avaliar seu estado geral de bem estar
físico e psicológico, as edificações necessitam de uma Inspeção Predial
periódica, a fim de garantir suas condições e características físicas, funcionais,
operacionais e de utilização. A Inspeção Predial, além de ser uma avaliação
geral de uma edificação, é fonte de informações à gestão da manutenção,
sendo a coleta de dados para a instrução de um plano de manutenção a ser
desenvolvido ou já existente. Devem ser solicitadas pelo inspetor predial,
documentações administrativas e técnicas, além do próprio plano de
manutenção e registros, para serem analisados e considerados junto às
orientações técnicas, lembrando, no entanto, que a Inspeção Predial, aqui
tratada, não tem como objetivo a “legalização” do edifício junto aos órgãos
públicos.
A Inspeção Predial associada a planos de manutenção minimiza os desgastes
naturais e a depreciação física, reduzindo, inclusive, a obsolescência técnica
uma vez que poderá estar ligada a estudos de modernização de sistemas ou
da própria edificação, consoante as desconformidades ou anomalias
verificadas e analisadas na vistoria e no laudo técnico.
Essas desconformidades ou anomalias apontadas na vistoria de Inspeção
Predial, voltada à Manutenção, estão relacionadas a questões de desempenho
dos sistemas e elementos construtivos, considerando as exigências dos
usuários.
As exigências dos usuários norteiam os trabalhos de Inspeção Predial, sendo
definidas como sendo de:
a)

Segurança:
•
Segurança estrutural;
•
Segurança contra o fogo;
•
Segurança no uso e operação.

Elaborado por:

Analisado por:

Professor :

Marcelo Gandra Falcone

Alessandra Aparecida Vieira

Marcelo Gandra Falcone

QUANDO IMPRESSO CONSIDERAR PIRATARIA - CÓPIA NÃO AUTORIZADA
UNINOVE

Rev. B

Engenharia de Avaliações e Perícias
Manutenção Predial e Avaliação de Máquinas
e Equipamentos

16/07/2011
Folha 19/424

b)

Habitabilidade:
•
Estanqueidade;
•
Conforto higrotérmico;
•
Conforto acústico;
•
Conforto lumínico;
•
Saúde, higiene e qualidade do ar;
•
Funcionalidade e acessibilidade;
•
Conforto tátil.

c)

Sustentabilidade:
•
Durabilidade;
•
Manutenabilidade – facilidade de se fazer a manutenção;
•
Adequação ambiental

O atendimento as necessidades e as exigências dos usuários é uma meta,
também, da manutenção predial, sendo esta definida na NBR 5674 –
Manutenção de edificações da A.B.N.T..Este atendimento interfere diretamente
no sistema de qualidade da manutenção predial e na sua confiabilidade, tal que
a Inspeção Predial é fonte de apuração dessas informações, imprescindíveis
na elaboração e revisão do plano de manutenção desenvolvido pela gestão
predial.
A Inspeção Predial também poderá ser contratada como uma vistoria de
conformidades não só voltada à elaboração, revisão e atualização de um plano
de manutenção predial, mas também como fonte de informações referentes a
conformidades: técnicas (envolvendo desempenho e vida útil), funcionais,
operacionais, legais, de segurança, de atualização tecnológica, econômicas,
etc.
Sendo assim, a aplicabilidade de uma Inspeção Predial, variando conforme seu
objetivo, pode ser:
 Elaboração de planos de manutenção integrada;
 Preservação da garantia da construção;
 Verificação do estado de conservação;
 Estudos de valorização e modernização de imóveis;
 Auxílio em transações imobiliárias (compra e venda de imóveis);
 Auxílio na gestão condominial (síndico e administradora);
 Redução de prêmio de seguro; etc.
 Como se faz uma Inspeção Predial?
A Inspeção Predial é uma vistoria que necessita de profissional especializado
no assunto, com visão sistêmica da edificação, bem como conhecimentos
técnicos sobre materiais, sistemas e funcionamentos.
Devem ser observados na Inspeção Predial, aspectos de facilidade de
manutenção existentes na edificação, sendo que dificuldade de acesso, por
Elaborado por:

Analisado por:

Professor :

Marcelo Gandra Falcone

Alessandra Aparecida Vieira

Marcelo Gandra Falcone

QUANDO IMPRESSO CONSIDERAR PIRATARIA - CÓPIA NÃO AUTORIZADA
UNINOVE

Rev. B

Engenharia de Avaliações e Perícias
Manutenção Predial e Avaliação de Máquinas
e Equipamentos

16/07/2011
Folha 20/424

exemplo, impede um bom desenvolvimento de rotinas de manutenção e até
mesmo da própria vistoria.
A falta de Inspeção Predial com foco na manutenção dificulta verificar,
quantificar e priorizar as deficiências nas edificações existentes. Em recentes
estatísticas / pesquisas de mercado verificamos à ausência de planos
estratégicos ou simples planos de manutenção usados na Manutenção e
Conservação dos imóveis, ou seja, a maioria dos sistemas de manutenção são
baseados nos elementos de conservação obrigatórios, tais como Ar
condicionado, Elevadores e equipamentos de transporte, Bombas, Caldeiras,
Geradores de água quente, e Grupo moto-geradores. Além dos aspectos
mercadológicos e de ausência de plano de manutenção, há a incidência dos
acidentes prediais causados pela negligência de investimentos nessa área.
O grau de deterioração dos sistemas e elementos construtivos em sua maioria
é avançado, além de precoce, o que impõe aos investidores ou proprietários a
necessidade de recuperações dispendiosas e urgentes. Neste sentido, a
Inspeção Predial têm ocupado espaço importante como ferramenta na gestão
dos ativos imobiliários, já que pode ser empregada na avaliação da
Manutenção e Conservação das edificações. Facilita, também, a análise, a
compreensão e o ordenamento de investimentos, que são baseados nas
medidas para a solução de falhas e anomalias constatadas pela Inspeção
Predial, classificadas segundo grau de risco, o que determinam prioridades
técnicas para um ajuste de investimentos no plano de manutenção, no plano de
reparos e nas modernizações.
Assim, o emprego da Inspeção Predial garante a manutenção da vantagem
competitiva dos imóveis, auxilia a redução de custos operacionais e de
manutenção, diminui o desconhecimento sobre os riscos envolvidos com
paralisações de sistemas e eventuais acidentes, bem como reduz os
investimentos patrimoniais urgentes. Auxilia, também, a programação de
investimentos patrimoniais futuros. Com este enfoque, a Inspeção Predial
ganha mais abrangência do que as suas características normativas, quais
sejam: simples constatação de falhas ou anomalias, classificações quanto ao
grau de risco e elaboração de orientações técnicas.
Para a identificação correta de investimentos, sejam esses na Manutenção ou
no Plano de Reparos, a Inspeção deverá atentar para a análise de
responsabilidades técnicas das deficiências constatadas, consoante a causa e
origem das mesmas, além de avaliar se as não-conformidades possuem
reparos / investimentos viáveis tecnicamente, sob a ótica da abrangência da
Manutenção.
Portanto, percebe-se que a Inspeção Predial quando empregada como
ferramenta na gestão de ativos, distancia-se em muito de uma simples
“Vistoria”.
Elaborado por:

Analisado por:

Professor :

Marcelo Gandra Falcone

Alessandra Aparecida Vieira

Marcelo Gandra Falcone

QUANDO IMPRESSO CONSIDERAR PIRATARIA - CÓPIA NÃO AUTORIZADA
UNINOVE

Rev. B

Engenharia de Avaliações e Perícias
Manutenção Predial e Avaliação de Máquinas
e Equipamentos

16/07/2011
Folha 21/424

3.1 DEFINIÇÕES:
Para os efeitos desta Curso, aplicam-se as seguintes definições extraídas da
Norma ABNT NBR 05674/1999:
“3.1 desempenho: Capacidade de atendimento das necessidades dos usuários
da edificação.
3.2 edificação: Produto constituído pelo conjunto de elementos definidos e
integrados em conformidade com os princípios e técnicas da Engenharia e da
Arquitetura para, ao integrar a urbanização, desempenhar funções ambientais
em níveis adequados.
3.3 inspeção: Avaliação do estado da edificação e de suas partes constituintes,
realizada para orientar as atividades de manutenção.
3.4 manual de operação, uso e manutenção: Documento que reúne
apropriadamente todas as informações necessárias para orientar as atividades
de operação, uso e manutenção da edificação (NBR 14037:1998 - Manual de
operação, uso e manutenção das edificações - Conteúdo e recomendações
para elaboração e apresentação).
3.5 manutenção: Conjunto de atividades a serem realizadas para conservar ou
recuperar a capacidade funcional da edificação e de suas partes constituintes
de atender as necessidades e segurança dos seus usuários.
3.6 necessidades dos usuários: Exigências de segurança, saúde, conforto,
adequação ao uso e economia cujo atendimento é condição para realização
das atividades previstas no projeto.
3.7 planejamento (dos serviços de manutenção): Elaboração de uma previsão
detalhada dos métodos de trabalho, ferramentas e equipamentos necessários,
condições especiais de acesso, cronograma de realização e duração dos
serviços de manutenção.
3.8 previsão orçamentária: Estimativa do custo para a realização de um
programa de manutenção.
3.9 programação (dos serviços de manutenção): Elaboração de um
cronograma para a realização dos serviços de manutenção.
3.10 projeto: Descrição gráfica e escrita das características de um serviço ou
obra de Engenharia ou de Arquitetura, definindo seus atributos técnicos,
econômicos, financeiros e legais.

Elaborado por:

Analisado por:

Professor :

Marcelo Gandra Falcone

Alessandra Aparecida Vieira

Marcelo Gandra Falcone

QUANDO IMPRESSO CONSIDERAR PIRATARIA - CÓPIA NÃO AUTORIZADA
UNINOVE

Rev. B

Engenharia de Avaliações e Perícias
Manutenção Predial e Avaliação de Máquinas
e Equipamentos

16/07/2011
Folha 22/424

3.11 proprietário: Pessoa física ou jurídica que tem o direito de dispor da
edificação.
3.12 serviço de manutenção: Intervenção realizada sobre a edificação e suas
partes constituintes, com a finalidade de conservar ou recuperar a sua
capacidade funcional.
3.13 sistema de manutenção: Conjunto de procedimentos organizado para
gerenciar os serviços de manutenção.
3.14 usuário: Pessoa física ou jurídica, ocupante permanente ou não
permanente da edificação.
3.15 vida útil: Intervalo de tempo ao longo do qual a edificação e suas partes
constituintes atendem aos requisitos funcionais para os quais foram projetadas,
obedecidos aos planos de operação, uso e manutenção previstos”.

3.2 CONCEITOS:
. O INSTITUTO BRASILEIRO DE AVALIAÇÕES E PERÍCIAS DE
ENGENHARIA (IBAPE) com a Norma de inspeção predial do IBAPE de 24 de
Setembro de 2009, define no seu item 5:

“3.2.1. DEFINIÇÕES: Para efeito desta Norma, aplicam-se as definições das
normas citadas e as seguintes:
3.2.1.1. INSPEÇÃO PREDIAL
É a análise isolada ou combinada das condições técnicas, de uso e de
manutenção da edificação.
3.2.1.2. NÍVEL DE INSPEÇÃO PREDIAL
Classificação quanto à complexidade da inspeção e a elaboração de seu laudo
final, quanto à necessidade do número de profissionais envolvidos e a
profundidade nas análises dos fatos.
3.2.1.3. TIPOS DE INSPEÇÃO PREDIAL
Define a natureza do elemento construtivo a ser inspecionado.
3.2.1.4. GRAU DE RISCO
Critério de classificação das anomalias e falhas constatadas em uma inspeção
predial, classificadas considerando o impacto do risco oferecido aos usuários,
ao meio ambiente e ao patrimônio, dentro dos limites da inspeção predial.
Elaborado por:

Analisado por:

Professor :

Marcelo Gandra Falcone

Alessandra Aparecida Vieira

Marcelo Gandra Falcone

QUANDO IMPRESSO CONSIDERAR PIRATARIA - CÓPIA NÃO AUTORIZADA
UNINOVE

Rev. B

Engenharia de Avaliações e Perícias
Manutenção Predial e Avaliação de Máquinas
e Equipamentos

16/07/2011
Folha 23/424

3.2.1.5. CRÍTICO-IMPACTO IRRECUPERÁVEL
É aquele que provoca danos contra a saúde e segurança das pessoas, e meio
ambiente, perda excessiva de desempenho e funcionalidade causando
possíveis paralisações, aumento excessivo de custo, comprometimento
sensível de vida útil e desvalorização acentuada.
3.2.1.6. REGULAR - IMPACTO PARCIALMENTE RECUPERÁVEL
É aquele que provoca a perda parcial de desempenho e funcionalidade da
edificação sem prejuízo à operação direta de sistemas, deterioração precoce e
desvalorização em níveis aceitáveis.
3.2.1.7. MÍNIMO-IMPACTO RECUPERÁVEL
É aquele causado por pequenas perdas de desempenho e funcionalidade,
principalmente quanto à estética ou atividade programável e planejada, sem
incidência ou sem a probabilidade de ocorrência dos riscos relativos aos
impactos irrecuperáveis e parcialmente recuperáveis, além de baixo ou
nenhum comprometimento do valor imobiliário.
3.2.1.8. LISTA DE VERIFICAÇÃO
Conjunto de tópicos a serem fundamentalmente vistoriados, sendo considerado
o número mínimo de itens a serem abordados em uma inspeção.Destacam-se
nessa listagem, por motivos óbvios, a estrutura, a impermeabilização, as
instalações hidráulicas e elétricas, os revestimentos das fachadas, as
esquadrias, os revestimentos, os elevadores, o sistema de ar condicionado a
cobertura e demais equipamentos, principalmente aqueles relativos a combate
a incêndio e SPDA”.

Figura 3 – Fotografia em banheiro de Hotel da Cracolandia em 22/07/2009

Elaborado por:

Analisado por:

Professor :

Marcelo Gandra Falcone

Alessandra Aparecida Vieira

Marcelo Gandra Falcone

QUANDO IMPRESSO CONSIDERAR PIRATARIA - CÓPIA NÃO AUTORIZADA
UNINOVE

Rev. B

Engenharia de Avaliações e Perícias
Manutenção Predial e Avaliação de Máquinas
e Equipamentos

16/07/2011
Folha 24/424

3.3 CLASSIFICAÇÕES DAS INSPEÇÕES PREDIAIS QUANTO AO NÍVEL DA
INSPEÇÃO
A Inspeção Predial poderá estar classificada de acordo com o nível pretendido
do inspetor e da finalidade da mesma.
3.3.1 Nível 1
Análises técnicas elaborada por um único profissional habilitado, voltadas a
edificações de pequeno porte, com escadarias ou apenas um elevador.

3.3.2 Nível 2
Análises técnicas procedidas por equipe de no mínimo dois profissionais de
diversas especialidades, eventualmente com o auxilio de equipamentos e/ou
aparelhos, consoante à complexidade dos sistemas construtivos existentes. A
Inspeção Predial nesse nível é elaborada por profissionais habilitados em uma
ou mais especialidades.
3.3.3 Nível 3
Equivalente aos parâmetros definidos para a inspeção de NÍVEL 2, acrescida
de consultoria com as prescrições para a reparação das anomalias e falhas
constatadas, ou de consultoria para a melhoria e ajuste dos procedimentos
existentes no plano de manutenção.

Figura 4 - Nivel de Inspeção; in “PALESTRA DE INSPEÇÃO PREDIAL” - autor: Flávia Zoéga Andreatta Pujadas.
Apresentação da ARCHEO Eng. Ass. - OUTUBRO/2008 no IBAPE, FORUM DE INSPEÇÃO DE ESTADIOS. Fonte
http://www.ibape-sp.org.br/arquivos/

Elaborado por:

Analisado por:

Professor :

Marcelo Gandra Falcone

Alessandra Aparecida Vieira

Marcelo Gandra Falcone

QUANDO IMPRESSO CONSIDERAR PIRATARIA - CÓPIA NÃO AUTORIZADA
UNINOVE

Rev. B

Engenharia de Avaliações e Perícias
Manutenção Predial e Avaliação de Máquinas
e Equipamentos

16/07/2011
Folha 25/424

3.4 CRITÉRIO e METODOLOGIA
Há necessidade de conhecer as definições, conceitos e diferenças no que
tange a: falhas e anomalias; causas e origens; conservação, manutenção e
reparação; operação e desempenho para a compreensão da abrangência da
Inspeção Predial como ferramenta de Gestão.
3.4.1 Critério
O critério utilizado para elaboração de laudos de inspeção predial baseia-se na
análise do risco oferecido aos usuários, ao meio ambiente e ao patrimônio,
diante as condições técnicas, de uso, operação e manutenção da edificação,
bem como da natureza da exposição ambiental. A análise do risco consiste na
classificação das anomalias e falhas identificadas nos diversos componentes
de uma edificação, quanto ao seu grau de risco, relacionado com fatores de
manutenção,
depreciação,
saúde,
segurança,
funcionalidade,
comprometimento de vida útil e perda de desempenho.
3.4.2 Metodologia
A metodologia a ser empregada consiste em:
 Determinação do nível e tipo de inspeção;
 Verificação da documentação;
 Obtenção de informações dos usuários, responsáveis, proprietários e
gestores das edificações;
 Inspeção dos tópicos da listagem de verificação;
 Classificação das anomalias e falhas;
 Classificação e análise das anomalias e falhas quanto ao grau de risco;
 Ordem de prioridades;
 Indicação das orientações técnicas;
 Classificação do estado de manutenção;
 Recomendações gerais e de sustentabilidade;
 Tópicos essenciais do laudo;
 Responsabilidades.

Figura 5 - Responsabilidades; in “INSPEÇÃO PREDIAL: FERRAMENTA NA GESTÃO DE ATIVOS” - autor: Flávia Zoéga
Andreatta Pujadas. Apresentação da ARCHEO Eng. Ass. – novembro de 2007 Seminário de Inspeção e Manutenção
Predial CREA AM. Fonte: http://www.crea-am.org.br/src/site/
Elaborado por:

Analisado por:

Professor :

Marcelo Gandra Falcone

Alessandra Aparecida Vieira

Marcelo Gandra Falcone

QUANDO IMPRESSO CONSIDERAR PIRATARIA - CÓPIA NÃO AUTORIZADA
UNINOVE

Rev. B

Engenharia de Avaliações e Perícias
Manutenção Predial e Avaliação de Máquinas
e Equipamentos

16/07/2011
Folha 26/424

3.5 CLASSIFICAÇÃO DAS ANOMALIAS E FALHAS
A classificação das anomalias e falhas poderá ser indicada nos laudos dos
níveis 1 e 2, e deverá ser anotada nos laudo de nível 3.

3.5.1 ANOMALIAS - é o desvio da normalidade, caracterizando uma
irregularidade ou ainda apresentada na forma de sintoma, lesão, defeito ou
manifestação patológica:



Endógena:
execução).

Originaria da própria edificação (projeto, materiais e



Exógena: Originaria de fatores externos a edificação, provocados por
terceiros ou de mau uso dos sistemas e equipamentos.



Natural: Originaria
imprevisíveis).



Funcional: Originaria do uso e degradação ao longo do tempo.

de

fenômenos

da

natureza

(previsíveis,

Figura 6 - Diagrama das Anomalias; in “INSPEÇÃO PREDIAL: FERRAMENTA NA GESTÃO DE ATIVOS” - autor: Flávia
Zoéga Andreatta Pujadas. Apresentação da ARCHEO Eng. Ass. – novembro de 2007 Seminário de Inspeção e
Manutenção Predial CREA AM. Fonte: http://www.crea-am.org.br/src/site/

Elaborado por:

Analisado por:

Professor :

Marcelo Gandra Falcone

Alessandra Aparecida Vieira

Marcelo Gandra Falcone

QUANDO IMPRESSO CONSIDERAR PIRATARIA - CÓPIA NÃO AUTORIZADA
UNINOVE

Rev. B

Engenharia de Avaliações e Perícias
Manutenção Predial e Avaliação de Máquinas
e Equipamentos

16/07/2011
Folha 27/424

3.5.2 FALHAS. Falha é incorrer em erro, relacionado ao desvio de uma
previsão técnica, ou ainda, ligado à interrupção de um processo operacional. A
falha está relacionada a procedimentos e processos sem aderência ou
executados equivocadamente. Portanto, falha vincula-se a problemas
decorrentes de serviços de Manutenção e Operação das edificações:


De Planejamento: Decorrentes de falhas de procedimentos e
especificações inadequados do plano de manutenção, sem aderência a
questões técnicas, de uso, de operação, de exposição ambiental e,
principalmente, de confiabilidade e disponibilidade das instalações,
consoante a estratégia de Manutenção. Além dos aspectos de
concepção do plano, há falhas relacionadas às periodicidades de
execução.



De Execução:
Associada à manutenção proveniente de falhas
causadas pela execução inadequada de procedimentos e atividades do
plano de manutenção, incluindo o uso inadequado dos materiais.



Operacionais: Relativas aos procedimentos inadequados de registros,
controles, rondas e demais atividades pertinentes.



Gerenciais: Decorrentes da falta de controle de qualidade dos serviços
de manutenção, bem como da falta de acompanhamento de custos da
mesma.

Figura 7 - Diagrama das Falhas; in “INSPEÇÃO PREDIAL: FERRAMENTA NA GESTÃO DE ATIVOS” - autor: Flávia Zoéga
Andreatta Pujadas. Apresentação da ARCHEO Eng. Ass. – novembro de 2007 Seminário de Inspeção e Manutenção
Predial CREA AM. Fonte: http://www.crea-am.org.br/src/site/

Elaborado por:

Analisado por:

Professor :

Marcelo Gandra Falcone

Alessandra Aparecida Vieira

Marcelo Gandra Falcone

QUANDO IMPRESSO CONSIDERAR PIRATARIA - CÓPIA NÃO AUTORIZADA
UNINOVE

Rev. B

Engenharia de Avaliações e Perícias
Manutenção Predial e Avaliação de Máquinas
e Equipamentos

16/07/2011
Folha 28/424

3.6 CLASSIFICAÇÃO DO GRAU DE RISCO
A classificação quanto ao grau de risco de uma anomalia ou falha deve sempre
ser fundamentada. Devem ser considerados os limites e os níveis da Inspeção
Predial realizada, em função das anomalias e falhas constatadas na inspeção
predial, considerando o impacto do risco oferecido aos usuários, ao meio
ambiente e ao patrimônio, dentro dos limites da inspeção predial. Quanto à
ordem de prioridades recomenda-se que seja disposta em ordem decrescente
quanto ao grau de risco e intensidade das anomalias e falhas, apurada por
metodologias técnicas apropriadas (GUT, FMEA, etc.).
3.6.1 RISCO CRÍTICO-IMPACTO IRRECUPERÁVEL
É aquele que provoca danos contra a saúde e segurança das pessoas, e
meio ambiente, perda excessiva de desempenho e funcionalidade
causando possíveis paralisações, aumento excessivo de custo,
comprometimento sensível de vida útil e desvalorização acentuada.
3.6.2 RISCO REGULAR - IMPACTO PARCIALMENTE RECUPERÁVEL
É aquele que provoca a perda parcial de desempenho e funcionalidade
da edificação sem prejuízo à operação direta de sistemas, deterioração
precoce e desvalorização em níveis aceitáveis.
3.6.3 RISCO MÍNIMO - IMPACTO RECUPERÁVEL
É aquele causado por pequenas perdas de desempenho e
funcionalidade, principalmente quanto à estética ou atividade
programável e planejada, sem incidência ou sem a probabilidade de
ocorrência dos riscos relativos aos impactos irrecuperáveis e
parcialmente recuperáveis, além de baixo ou nenhum comprometimento
do valor imobiliário.

Figura 8 - Dados sobre Edificações; in “PALESTRA DE INSPEÇÃO PREDIAL” - autor: Flávia Zoéga Andreatta Pujadas.
Apresentação da ARCHEO Eng. Ass. - OUTUBRO/2008 no IBAPE, FORUM DE INSPEÇÃO DE ESTADIOS. Fonte
http://www.ibape-sp.org.br/arquivos/
Elaborado por:

Analisado por:

Professor :

Marcelo Gandra Falcone

Alessandra Aparecida Vieira

Marcelo Gandra Falcone

QUANDO IMPRESSO CONSIDERAR PIRATARIA - CÓPIA NÃO AUTORIZADA
UNINOVE

Rev. B

Engenharia de Avaliações e Perícias
Manutenção Predial e Avaliação de Máquinas
e Equipamentos

16/07/2011
Folha 29/424

4) Definições de estado de conservação e suas classificações.

4.1 CLASSIFICAÇÃO DA QUALIDADE DA MANUTENÇÃO E USO
A classificação quanto ao estado de manutenção e condições de uso deve
sempre ser fundamentada, considerando os graus de risco e as intensidades
das anomalias e, especialmente das falhas encontradas. Além disso, deve ser
analisada a condições de regularidade do uso bem como os níveis de
aprofundamento da Inspeção Predial realizada, devendo-se indicar uma das
seguintes classificações:
4.1.1 – Classificação da Qualidade da Manutenção:
 Manutenção Ótima
 Manutenção Normal
 Manutenção Mínima
 Manutenção Deficiente
 Manutenção Inexistente
4.1.2 – Classificação das Condições de Uso:
A classificação pode indicar a condição de uso regular ou irregular. O uso
regular vai permitir que a edificação seja ocupada e utilizada dentro dos
parâmetros previstos no projeto, contribuindo para a sua longevidade. Quando
o uso é irregular, a edificação estará sujeita a riscos não previstos que poderão
comprometer a segurança e habitabilidade. Em relação ao uso, o inspetor
predial deverá classificar a edificação:
USO REGULAR – Quando a edificação inspecionada encontra-se ocupada e
utilizada de acordo com o uso previsto no projeto;
USO IREGULAR – Quando a edificação inspecionada encontra-se ocupada e
utilizada de forma irregular, com o uso divergente do previsto no projeto;
A prioridade na ordem de reparos ou soluções poderá se basear nessa(s)
classificação (ões), quanto ao estado de manutenção geral do empreendimento
e condições de uso; não impedindo que se recomende eventual interdição em
parte da edificação; visando garantir a integridade dos usuários; quando do
surgimento de situações de grau de risco crítico, ou identificação de uso
irregular, em setores específicos e destacados do restante do
empreendimento inspecionado.

Elaborado por:

Analisado por:

Professor :

Marcelo Gandra Falcone

Alessandra Aparecida Vieira

Marcelo Gandra Falcone

QUANDO IMPRESSO CONSIDERAR PIRATARIA - CÓPIA NÃO AUTORIZADA
UNINOVE

Rev. B

Engenharia de Avaliações e Perícias
Manutenção Predial e Avaliação de Máquinas
e Equipamentos

16/07/2011
Folha 30/424

5) Aspectos legais e aplicabilidade.

Os problemas construtivos da obra nova são de responsabilidade dos
construtores e incorporadores, conforme o art.12 do Código do Consumidor,
que determina a reparação pelos danos causados aos consumidores por
defeitos de projeto, fabricação, construção e montagem de seus produtos, bem
como por informações insuficientes ou inadequadas sobre sua utilização e
riscos. As anomalias de origem endógenas devem ser reparadas pelos
construtores e incorporadores.
O Termo de Garantia Contratual que, por sua vez, é complementar à garantia
legal especificada no Artigo 1.245 do Código Civil Brasileiro:
“Art. 1245 - Nos contratos de empreitada de edifícios ou outras construções
consideráveis, o empreiteiro de materiais e execução responderá, durante 5
(cinco) anos, pela solidez e segurança do trabalho, assim em razão dos
materiais, como do solo, exceto, quanto a este, se, não o achando firme,
preveniu em tempo o dono da obra”.
Este prazo de garantia legal, que no caso dos edifícios é também chamado de
garantia qüinqüenal, refere-se exclusivamente aos casos de solidez e
segurança da edificação, ou seja, ocorrências que possam vir a causar ameaça
à integridade física de pessoas. São ocorrências que se enquadram na
definição de defeito (ver Figura 9), estabelecido no CDC:
“Art. 12 - O fabricante, o produtor, o construtor, nacional ou estrangeiro, e o
importador respondem, independentemente da existência de culpa, pela
reparação dos danos causados aos consumidores por defeitos decorrentes de
projeto, fabricação, construção, montagem, fórmulas, manipulação,
apresentação ou acondicionamento de seus produtos, bem como por
informações insuficientes ou inadequadas sobre sua utilização e riscos.
§ 1º - O produto é defeituoso quando não oferece a segurança que dele
legitimamente se espera,[...]”.
O Termo de Garantia Contratual, complementar à garantia legal, é um termo
feito por escrito e que precede e acompanha o Manual da Edificação. O termo
de garantia ou equivalente deve esclarecer, de maneira adequada, em que
consiste a mesma garantia, bem como a forma, o prazo e o lugar em que pode
ser exercitada e os ônus a cargo do consumidor, devendo ser-lhe entregue,
devidamente preenchido pelo construtor, no ato da entrega e recebimento do
imóvel. As garantias oferecidas pelo Construtor devem especificar, além de
outras, as exigências quanto aos prazos de atendimento aos vícios da
construção, tal como mencionado no CDC:
“Art. 18 - Os fornecedores de produtos de consumo duráveis ou não duráveis
respondem solidariamente pelos vícios de qualidade ou quantidade que os
tornem impróprios ou inadequados ao consumo a que se destinam ou lhes
diminuam o valor, assim como por aqueles decorrentes da disparidade, com as
indicações constantes do recipiente, da embalagem, rotulagem ou mensagem
Elaborado por:

Analisado por:

Professor :

Marcelo Gandra Falcone

Alessandra Aparecida Vieira

Marcelo Gandra Falcone

QUANDO IMPRESSO CONSIDERAR PIRATARIA - CÓPIA NÃO AUTORIZADA
UNINOVE

Rev. B

Engenharia de Avaliações e Perícias
Manutenção Predial e Avaliação de Máquinas
e Equipamentos

16/07/2011
Folha 31/424

publicitária, respeitadas as variações decorrentes de sua natureza, podendo o
consumidor exigir a substituição das partes viciadas”.
Vícios da construção (não confundir com defeito, citado anteriormente) podem
ser de duas naturezas: vícios aparentes ou de fácil constatação (ver Figura 10),
e vícios ocultos (ver Figura 11). Os vícios ocultos, qualificados como vícios
redibitórios – da mesma forma que os vícios aparentes ou de fácil constatação
têm prazo de prescrição semestral, fixado pelo Código Civil e, desta maneira, o
momento para que o vício fique evidenciado não deverá ultrapassar este
tempo:
Capítulo IV - DOS PRAZOS DA PRESCRIÇÃO
Art. 178. Prescreve-se:
[...]
§ 5°. Em 6 (seis) meses:
[...]
IV - a ação para haver o abatimento do preço da coisa imóvel, recebida com
vício redibitório, ...

O Termo de Garantia Contratual, complementar à garantia legal, poderá
conter a descrição das garantias adicionais dadas pelos fornecedores de
componentes, instalações e equipamentos da edificação, identificando-se
prazos de validade e responsabilidades dos usuários da edificação para a
validade destas garantias. Na identificação dos fornecedores de componentes,
instalações e equipamentos, incluindo nomes, registros profissional e/ou
empresarial, endereço e telefone, far-se-á obrigatoriamente a ressalva de que o
contato direto com estes fornecedores é uma faculdade e não uma
responsabilidade dos usuários da edificação.

Figura 9 – Defeitos endógenos na construção - Aristides Athayde Cordeiro Termo De Garantia E Manual Da Edificação
Curitiba, Sinduscon Pr Janeiro De 2001 fonte www.sindusconpr.com.br/.../20090401150424Manual_proprietario.doc
Elaborado por:

Analisado por:

Professor :

Marcelo Gandra Falcone

Alessandra Aparecida Vieira

Marcelo Gandra Falcone

QUANDO IMPRESSO CONSIDERAR PIRATARIA - CÓPIA NÃO AUTORIZADA
UNINOVE

Rev. B

Engenharia de Avaliações e Perícias
Manutenção Predial e Avaliação de Máquinas
e Equipamentos

16/07/2011
Folha 32/424

Figura 10 – Vícios aparentes ou de fácil constatação - ARISTIDES ATHAYDE CORDEIRO TERMO DE GARANTIA E
MANUAL DA EDIFICAÇÃO CURITIBA, SINDUSCON PR JANEIRO DE 2001 fonte
www.sindusconpr.com.br/.../20090401150424Manual_proprietario.doc

Figura 11– Vícios rebiditórios ou ocultos - ARISTIDES ATHAYDE CORDEIRO TERMO DE GARANTIA E MANUAL DA
EDIFICAÇÃO CURITIBA, SINDUSCON PR JANEIRO DE 2001 fonte
www.sindusconpr.com.br/.../20090401150424Manual_proprietario.doc

Elaborado por:

Analisado por:

Professor :

Marcelo Gandra Falcone

Alessandra Aparecida Vieira

Marcelo Gandra Falcone

QUANDO IMPRESSO CONSIDERAR PIRATARIA - CÓPIA NÃO AUTORIZADA
UNINOVE

Rev. B

Engenharia de Avaliações e Perícias
Manutenção Predial e Avaliação de Máquinas
e Equipamentos

16/07/2011
Folha 33/424

As anomalias de origem exógena devem ser reparadas pelos causadores
desses danos, consoante está preconizado pelo art.186 do Código Civil, ou
seja, aquele que, por ação ou omissão voluntária, negligência ou imprudência,
violar direito e causar dano a outrem, ainda que exclusivamente moral, comete
ato ilícito. Em geral, a responsabilidade pela periclitação e acidentes
construtivos, decorrentes de fatores funcionais, com destaque para os
descuidos com a Manutenção das Edificações, é atribuída ao proprietário ou
síndico, consoante estabelecido em lei.
O item V do artigo 1.348 do Código Civil consigna que compete ao síndico
diligenciar a conservação e a guarda das partes comuns e zelar pela prestação
dos serviços que interessem aos possuidores, ou seja, é sua responsabilidade
conservar o condomínio em boas condições de segurança, proteção,
salubridade e conforto, cuja principal diligência para tanto é a Manutenção.
O item VIII do art.39 do Código do Consumidor, por seu lado, veda os serviços
em desacordo com as normas da ABNT, lembrando-se que o cumprimento da
norma técnica NBR 5674/99 da ABNT, quanto à Manutenção de Edificações, é
outra medida a ser diligenciada pelo síndico.
As anomalias de de origem Natural decorrentes de fenômenos da natureza
(previsíveis, imprevisíveis) e Funcional originarias do uso e degradação ao
longo do tempo são de responsabilidade do sindico e em caso de edificações
de menor porte são de responsabilidade do proprietário e do responsável pelo
uso
Destaque-se portanto que os síndicos e proprietários de imóveis e usuários ,
são os agentes mais vulneráveis, em virtude da negligência com a Manutenção
Predial, a colocar pessoas em condições de risco ou mesmo causando vítimas
pelos acidentes prediais.
Quanto à responsabilidade criminal, no capítulo das Lesões Corporais, o art
129 do Código Penal é muito claro quanto a se ofender a integridade corporal
ou a saúde de outrem, com pena variando de três meses a doze anos de
detenção; no capítulo da Periclitação da Vida e da Saúde, o art.132 dispõe que
expor a vida ou a saúde de outrem a perigo direto e iminente pode gerar pena
de três meses a um ano de detenção. Tais exigências legais não deixam
qualquer dúvida quanto aos ônus, responsabilidades e sansões passíveis de
serem atribuídas aos responsáveis pelas anomalias construtivas.
O(s) profissional é (são) responsável (ais) única e exclusivamente pelo escopo
e pelo nível de inspeção contratada.


Exime-se de qualquer responsabilidade técnica a empresa ou
profissional, quando as observações e orientações existentes no laudo
de Inspeção Predial não forem implementadas pelo proprietário ou

Elaborado por:

Analisado por:

Professor :

Marcelo Gandra Falcone

Alessandra Aparecida Vieira

Marcelo Gandra Falcone

QUANDO IMPRESSO CONSIDERAR PIRATARIA - CÓPIA NÃO AUTORIZADA
UNINOVE

Rev. B

Engenharia de Avaliações e Perícias
Manutenção Predial e Avaliação de Máquinas
e Equipamentos

16/07/2011
Folha 34/424

responsável legal da edificação,bem como por qualquer anomalia e falha
decorrente de deficiências de: projeto, execução, especificação de
materiais, e/ou deficiência de manutenção, bem como qualquer outra
alheia ao trabalho de inspeção procedido.


Exime-se de qualquer responsabilidade técnica a empresa ou
profissional, sobre a análise de elementos, componentes, subsistemas e
locais onde não foi possível executar a Inspeção Predial. Deve-se
explicitar a redação específica desses impedimentos no laudo.

Quanto a documentação recomenda-se analisar, quando disponíveis e
existentes, os seguintes documentos, legais, administrativos e técnicos da
edificação.
TRABALHISTA
 Livro ou cartão de ponto
 Horário de trabalho
 Carimbo do C.N.P.J
 Matrícula no INSS
 Livro de Registro de Empregados
 Livro de Inspeção do Trabalho
 Contratos de Experiência
 Folha de Pagamento
 Pasta com todas as rescisões de contrato de trabalho
 Cadastro do empregador para o Vale Transporte
 Declaração e Termo de Responsabilidade - vale transporte
 Termo de responsabilidade para concessão do Salário-Família
 Declaração de dependentes para fins de desconto do Imposto de Renda
 Guias - contribuição sindical ; INSS ; FGTS ; PIS ; IR
 Certidões negativas de Débito (CND) do INSS e FGTS a cada três
 meses, se o responsável pelo pagamento é a administradora ou o
contador
 RAIS (Relação Anual de Informação Social)
 DIRF (Declaração do Imposto de Renda na Fonte)
 Comprovante de rendimentos pagos e de retenção de Imposto de Renda
na Fonte.
ADMINISTRATIVA
 Instituição, Especificação e Convenção de Condomínio;
 Regimento Interno do Condomínio;
 Alvará de Construção;
 Auto de Conclusão;
 IPTU
 Programa de Prevenção de Riscos Ambientais (PPRA);
 Alvará do Corpo de Bombeiros
Elaborado por:

Analisado por:

Professor :

Marcelo Gandra Falcone

Alessandra Aparecida Vieira

Marcelo Gandra Falcone

QUANDO IMPRESSO CONSIDERAR PIRATARIA - CÓPIA NÃO AUTORIZADA
UNINOVE

Engenharia de Avaliações e Perícias
Manutenção Predial e Avaliação de Máquinas
e Equipamentos


















Rev. B
16/07/2011
Folha 35/424

Ata de instalação do condomínio;
A lista de documentos mencionada refere-se ao Município de São Paulo
- SP. Para outras localidades, o Inspetor predial devera adequar e
complementar a referida lista, consoantes as exigência de posturas
Municipais e legais (lembra sempre do Art 5º da Constituição).
Autos de Vistoria de Segurança (AVS)
Certificado de Manutenção do Sistema de Segurança;
Certificado de treinamento de brigada de incêndio;
Licença de funcionamento da prefeitura
Licença de funcionamento do órgão ambiental estadual
Cadastro no sistema de limpeza urbana
Comprovante da destinação de resíduos sólidos, etc.
Relatório de danos ambientais, quando pertinente
Licença da vigilância sanitária, quando pertinente
Contas de consumo de energia elétrica, água e gás.
PCMSO – Programa de Controle Médico de Saúde Ocupacional.
Alvará de funcionamento;
Certificado de Acessibilidade

TÉCNICA
 Memorial descritivo dos sistemas construtivos;
 Quadros de área;
 Projetos dos sistemas construtivos (listar o que está hoje na Norma)
 Projeto aprovado;
 Projeto modificativo;
 Projeto executivo;
 Projeto de sondagem;
 Projeto de fundações, contenções, cortinas e arrimos;
 Projeto de estruturas;
 Projeto de formas;
 Projeto de armação;
 Projeto de Instalações Prediais:
 Instalações Hidráulico-sanitárias, e de água pluviais;
 Instalações de gás;
 Instalações elétricas, de telefonia e de Pára-raios (SPDA);
 Instalações de ar condicionado;
 Projeto de Impermeabilização;
 Projeto de Revestimentos;
 Projeto de Pintura;
 Projeto de acessibilidade
MANUTENÇÃO E OPERAÇÃO
 Manual de Uso, Operação e Manutenção (Manual do Proprietário e do
Síndico);
Elaborado por:

Analisado por:

Professor :

Marcelo Gandra Falcone

Alessandra Aparecida Vieira

Marcelo Gandra Falcone

QUANDO IMPRESSO CONSIDERAR PIRATARIA - CÓPIA NÃO AUTORIZADA
UNINOVE

Engenharia de Avaliações e Perícias
Manutenção Predial e Avaliação de Máquinas
e Equipamentos



















Rev. B
16/07/2011
Folha 36/424

Plano de Manutenção e Operação e Controle (PMOC)
Selos dos Extintores
Relatório de Inspeção Anual de Elevadores (RIA);
Atestado do Sistema de Proteção a Descarga Atmosférica - SPDA;
Certificado de limpeza e desinfecção dos reservatórios;
Relatório das análises físico-químicas de potabilidade de água dos
reservatórios e rede;
Certificado de ensaios de pressurização em mangueiras;
Laudos de Inspeção Predial anteriores;
Certificado de ensaios de pressurização em cilindro de extintores.
Relatório do acompanhamento de rotina da Manutenção Geral;
Relatórios dos Acompanhamentos das Manutenções dos Sistemas
específicos: ar condicionado, motores, antenas, bombas, CFTV,
Equipamentos eletromecânicos e demais componentes.
Relatórios de ensaios da água gelada e de condensação de sistemas de
ar condicionado central
Certificado de teste de estanqueidade do sistema de gás.
Relatórios de ensaios preditivos, tais como: termografia, vibrações
mecânicas, etc.
Relatórios dos Acompanhamentos das Manutenções dos Sistemas
Cadastro de equipamentos e máquinas

A lista acima é uma sugestão e deve ser adequada pelo inspetor predial de
acordo com a localidade da edificação inspecionada, havendo outros
documentos específicos para cada municipalidade, o que deve ser pesquisado
e providenciado pelo inspetor, quando possível.
Os documentos da lista acima devem ser colocados no Laudo como anexos,
pois eles são utilizados como parte das evidências objetivas colhidas na
diligencia e tem valor de subsídio das informações e conclusões
(embasamento). Estes documentos listados assim como as normas utilizadas
como referencia e as fotografias, formam um método racional para evidenciar
as conclusões de forma confiável e reproduzível em um processo sistemático
de perícia.
Evidência de vistoria tem que ser verificável e recuperável. Elas são baseadas
em amostras das informações disponíveis, uma vez que uma vistoria é
realizada durante um período finito de tempo e com recursos finitos.
Resumindo, o uso apropriado de evidencias está intimamente relacionado com
a confiança que pode ser colocada nas conclusões e nos laudos.

Elaborado por:

Analisado por:

Professor :

Marcelo Gandra Falcone

Alessandra Aparecida Vieira

Marcelo Gandra Falcone

QUANDO IMPRESSO CONSIDERAR PIRATARIA - CÓPIA NÃO AUTORIZADA
UNINOVE

Rev. B

Engenharia de Avaliações e Perícias
Manutenção Predial e Avaliação de Máquinas
e Equipamentos

16/07/2011
Folha 37/424

Figura 12 - Responsabilidades; in “INSPEÇÃO PREDIAL: FERRAMENTA NA GESTÃO DE ATIVOS” - autor: Flávia Zoéga
Andreatta Pujadas. Apresentação da ARCHEO Eng. Ass. – novembro de 2007 Seminário de Inspeção e Manutenção
Predial CREA AM. Fonte: http://www.crea-am.org.br/src/site/

Figura 13– Exemplos de falência estrutural em incêndios – Cartilha CONTRU 2, Prefeitura da Cidade de São Paulo,
Secretaria da Habitação Dez 2008

Elaborado por:

Analisado por:

Professor :

Marcelo Gandra Falcone

Alessandra Aparecida Vieira

Marcelo Gandra Falcone

QUANDO IMPRESSO CONSIDERAR PIRATARIA - CÓPIA NÃO AUTORIZADA
UNINOVE

Rev. B

Engenharia de Avaliações e Perícias
Manutenção Predial e Avaliação de Máquinas
e Equipamentos

16/07/2011
Folha 38/424

6) Valorização patrimonial desencadeada por ações de manutenção
predial

A Manutenção Predial compreende um conjunto de serviços para a
conservação ou recuperação da capacidade funcional da edificação, a fim de
atender as necessidades dos usuários. Possui por finalidade primeira a
minimização dos desgastes nos diversos sistemas que compõem o edifício,
bem como o atendimento aos níveis de desempenho e exigências dos
usuários, permitindo que as vidas úteis desses sistemas se aproximem dos
prazos para os quais foram projetados.
Para estabelecer o Plano de Manutenção Predial, que por definição é um
conjunto de tarefas planejadas e programadas segundo uma Estratégia de
Gestão, os Gerentes Condominiais não poderão se abster da constatação das
reais condições técnicas do empreendimento.Neste aspecto a INSPEÇÃO
PREDIAL auxilia todo o processo e, inclusive, já está prevista em norma
técnica de Manutenção Predial (NBR 5674 da ABNT).
INSPEÇÃO PREDIAL é, de forma simples, a verificação da edificação,
retratando o panorama geral em um determinado instante, através do
levantamento e indicação das características reais do edifício.
O Relatório de Inspeção Predial relaciona os problemas de ordem técnica
funcional e de manutenção encontrados nos sistemas que compõe o
empreendimento, documentando através de registro fotográfico e
estabelecendo prioridades de intervenção sob a ótica da segurança do usuário.
Informa, também, as recomendações técnicas para cada questão abordada.
Com estas informações os Gerentes Condominiais poderão definir, corrigir ou
reorientar o Plano de Manutenção do Edifício permitindo a programação de
despesas e custos intrínsecos à manutenção. Além disso, estabelecerão
parâmetros para a determinação de outros dois aspectos importantes na
gestão condominial: A MANUTENÇÃO DO VALOR PATRIMONIAL E
AUMENTO DO VALOR PATRIMONIAL.
A MANUTENÇÃO DO VALOR PATRIMONIAL é tarefa da manutenção predial
por excelência, visto que está diretamente relacionada com a funcionalidade
dos sistemas, sua conservação e minimização de gastos.
O AUMENTO DE VALOR PATRIMONIAL é uma etapa na vida econômica de
um edifício que deve estar prevista nos planos de Gestão Condominial como
estratégia Competitiva de Administração.
Para haver Aumento de Valor Patrimonial, analisam-se as alterações e
modificações necessárias dos sistemas de funcionamento, através da
adequação e atualização frente às novas tendências mercadológicas. Nesse
Elaborado por:

Analisado por:

Professor :

Marcelo Gandra Falcone

Alessandra Aparecida Vieira

Marcelo Gandra Falcone

QUANDO IMPRESSO CONSIDERAR PIRATARIA - CÓPIA NÃO AUTORIZADA
UNINOVE

Rev. B

Engenharia de Avaliações e Perícias
Manutenção Predial e Avaliação de Máquinas
e Equipamentos

16/07/2011
Folha 39/424

caso são estabelecidos os critérios de quando e como realizar as alterações,
programando o “Retrofit” e o “Up Grade” necessários para que seja garantida a
manutenção da VANTAGEM COMPETITIVA no mercado imobiliário.
Com base nestes conceitos, os custos de manutenção não podem ser
confundidos como despesas. Os gastos com MANUTENÇÃO são
INVESTIMENTOS ao patrimônio, já que permitem MANTER E AUMENTAR o
VALOR PATRIMONIAL da empresa / CONDOMÍNIO.

Figura 14 - Manutenção – Perda de Valor; in “PALESTRA DE INSPEÇÃO PREDIAL” - autor: Flávia Zoéga Andreatta
Pujadas. Apresentação da ARCHEO Eng. Ass. - OUTUBRO/2008 no IBAPE, FORUM DE INSPEÇÃO DE ESTADIOS. Fonte
http://www.ibape-sp.org.br/arquivos/

De acordo com este contexto, a INSPEÇÃO PREDIAL impulsiona toda a gama
de atividades para a materialização do investimento no patrimônio, e se faz
insubstituível
como
instrumento
moderno
na
ADMINISTRAÇÃO
CONDOMINIAL, onde a regra é a administração por resultados com plena
utilização dos recursos tecnológicos, humanos e materiais, a fim de solucionar
questões relacionadas ao consumo e investimento de bens imóveis.”.
A Inspeção Predial é o fundamento ou a base de todo o processo da
manutenção de valores, tal qual a relação abaixo estabelecida, segundo o fluxo
de informações proposto:
 Estudo do mercado – panorama geral
 Realização da Inspeção Predial
 Análise das anomalias – prioridades de serviços – recomendações
técnicas
 Plano de manutenção e reformas, considerando o mercado
Elaborado por:

Analisado por:

Professor :

Marcelo Gandra Falcone

Alessandra Aparecida Vieira

Marcelo Gandra Falcone

QUANDO IMPRESSO CONSIDERAR PIRATARIA - CÓPIA NÃO AUTORIZADA
UNINOVE

Engenharia de Avaliações e Perícias
Manutenção Predial e Avaliação de Máquinas
e Equipamentos






Rev. B
16/07/2011
Folha 40/424

Levantamento de valores a serem investidos
Estabelecimento de cronograma de intervenções
Análises de viabilidade de investimentos
Verificação da consolidação da valorização patrimonial

Figura 15 - ; in “PALESTRA DE INSPEÇÃO PREDIAL” - autor: Flávia Zoéga Andreatta Pujadas. Apresentação da
ARCHEO Eng. Ass. - Novembro/200p no IBAPE, Curso de Inspeção Predial em Estádios de Futebol. Fonte
http://www.ibape-sp.org.br/arquivos/

É importante destacar que a manutenção recupera e conserva a capacidade
funcional de sistemas e elementos construtivos, sendo assim ela não tem como
objetivo reformar ou alterar características de projeto.
A manutenção recupera através de atividades corretivas, sendo estas
preferencialmente planejadas, envolvendo aspectos de durabilidade,
desempenho, vida útil.
As atividades de manutenção a serem realizadas dentro de um plano de gestão
da manutenção – estratégia de ação, essas podem ser classificadas em
preditivas, preventivas, corretivas e detectivas. Manutenção Preditiva: é uma
atividade que visa estudos sistemas e
equipamentos e analisar seu
Elaborado por:

Analisado por:

Professor :

Marcelo Gandra Falcone

Alessandra Aparecida Vieira

Marcelo Gandra Falcone

QUANDO IMPRESSO CONSIDERAR PIRATARIA - CÓPIA NÃO AUTORIZADA
UNINOVE

Rev. B

Engenharia de Avaliações e Perícias
Manutenção Predial e Avaliação de Máquinas
e Equipamentos

16/07/2011
Folha 41/424

comportamento, a fim de predizer e apontar anomalias, instruindo aspectos da
manutenção preventiva.
Manutenção Preventiva: Age antecipadamente para que não haja a reparação,
são atividades programadas em datas pré-estabelecidas obedecendo, portanto,
critérios técnicos e administrativos.É o conjunto de atividades que visam evitar
possíveis problemas dos componentes das máquinas e equipamentos,
comprometendo a sua performance e desempenho
Manutenção Corretiva: Visa à reparação, caracterizada por serviços planejados
ou não, objetivando corrigir defeitos.
Manutenção Detectiva: Visa apurar a causa de problemas e sua análise, a fim
de auxiliar nos planos de manutenção bem como nas atividades de
manutenção preventiva e corretiva.É a engenharia de manutenção ou a
manutenção proativa.
Observa-se, segundo a Lei de Sitter ou Lei dos Cinco, a evolução progressiva
de custos de manutenções, aplicada às suas atividades, considerando os
custos relativos ao tipo de intervenção conforme figura abaixo:

Figura 16 - Custos de Manutenção; in “ASPECTOS PRÁTICOS DA INSPEÇÃO PREDIAL E MANUTENÇÃO” - autor: Flávia
Zoéga Andreatta Pujadas. Apresentação da ARCHEO Eng. Ass. - Julho/2005 no Primeiro Seminário de Inspeção e
Manutenção Predial da P&M. Fonte http://www.ibape-sp.org.br/arquivos/aspectos.pdf

Segundo SITTER, colaborador do CEB - COMITÊ EURO-INTERNACIONAL
DU BÉTON, apud ELENE, 1992, pg.24. e formulador dessa lei de custos, adiar
uma intervenção significa aumentar os custos diretos em uma razão de
progressão geométrica de 5 (cinco).Sendo, conforme ilustração acima. Se em
t2, o custo de intervenção é igual a 5, em t3 será 25, em t4 será 125 e assim
por diante na razão de 5.

Elaborado por:

Analisado por:

Professor :

Marcelo Gandra Falcone

Alessandra Aparecida Vieira

Marcelo Gandra Falcone

QUANDO IMPRESSO CONSIDERAR PIRATARIA - CÓPIA NÃO AUTORIZADA
UNINOVE

Rev. B

Engenharia de Avaliações e Perícias
Manutenção Predial e Avaliação de Máquinas
e Equipamentos

16/07/2011
Folha 42/424

7) COMPONENTES DOS LAUDOS E INFORMAÇÕES IMPORTANTES
RELATIVAS À MANUTENÇÃO E INSPEÇÃO PREDIAL.

Consoante o desenvolvimento dos itens abordados nos tópicos anteriores a
inspeção predial deverá ser planejada conforme o tipo da edificação,
consideradas suas características construtivas, qualidade da documentação
entregue ao inspetor e nível de inspeção a ser realizado.
O planejamento da vistoria deverá ter início com uma entrevista com o
responsável da edificação (síndico, administrador ou gestor), com abordagem
dos aspectos cotidianos do uso e da manutenção do imóvel.
A inspeção predial poderá ser realizada em toda a edificação ou em partes
desta, indicada pelo interessado, ou, ainda, de acordo com a abrangência do
trabalho.
A Inspeção Predial e seu relatório devem reportar claramente as falhas e
anomalias. Durante a confecção do laudo é de grande responsabilidade atentar
para os tipos e origens dos problemas constatados, a fim de proceder a
orientações pertinentes à Manutenção ou ao Plano de Reparos. Segundo
diversas estatísticas sobre a incidência dos problemas na construção civil, a
manifestação patológica se dá nas etapas de uso e operação das edificações,
mesmo quando estejam relacionadas às etapas de projeto e execução. Logo,
conforme definido acima, anomalias possuem origem nas etapas de projeto,
execução ou especificação de materiais, já as falhas relacionam-se a
deficiências na etapa de uso, operação e /ou manutenção. Quando as
anomalias são funcionais, ainda podem existir origens em processos de
obsolescência, perda funcional, degradação, etc.
Portanto, consoante a visão sistêmica tri-dimensional (ver figura 5, pág ), a
questão da viabilidade técnica dos serviços de manutenção está dependente
de um correto diagnóstico dos problemas existentes nas edificações. É
imprescindível, que haja a avaliação periódica das instalações, conforme os
critérios acima expostos, para o sucesso de um plano de Manutenção.
Portanto, após a constatação de anomalias e falhas, bem como da análise
quanto as suas causalidades e origens, recomenda-se verificar se as
orientações técnicas a serem elaboradas nos Laudos de Inspeção Predial são
pertinentes a atividades distintas de: Manutenção ou Reparação.

Figura 17 - Visão tri-dimensional da Inspeção; in “INSPEÇÃO PREDIAL: FERRAMENTA NA GESTÃO DE ATIVOS” autor: Flávia Zoéga Andreatta Pujadas. Apresentação da ARCHEO Eng. Ass. – novembro de 2007 Fonte:
http://www.crea-am.org.br/src/site/
Elaborado por:

Analisado por:

Professor :

Marcelo Gandra Falcone

Alessandra Aparecida Vieira

Marcelo Gandra Falcone

QUANDO IMPRESSO CONSIDERAR PIRATARIA - CÓPIA NÃO AUTORIZADA
UNINOVE

Rev. B

Engenharia de Avaliações e Perícias
Manutenção Predial e Avaliação de Máquinas
e Equipamentos

16/07/2011
Folha 43/424

7.1 Elaboração do Laudo de Inspeção Predial

7.1.1 Dados que devem constar do Laudo:



INTRODUÇÃO
o Identificação do solicitante e do imóvel;
o Classificação do objeto da inspeção;
o Localização;
o Data da Diligência (Vistoria – dias – horas, ou seja, determina a
duração);



DESENVOLVIMENTO
o Caracterização das condições verificada na vistoria;
o Descrição Técnica do objeto:
o Padrão Construtivo
o Utilização e Ocupação
o Idade da edificação
o Nível utilizado;
o Documentação analisada.
o Critério e Metodologia adotada
o Relação dos elementos construtivos e equipamentos vistoriados
com a descrição das respectivas anomalias, classificadas por
grau de risco e urgência (Classificação e análise das anomalias e
falhas quanto ao grau de risco e Indicação da ordem de
prioridade);
o Avaliação do estado de conservação geral do imóvel;



CONCLUSÃO
o Conclusões e recomendações
o Relação de documentos analisados;
o Indicação das recomendações técnicas e/ou das medidas
preventivas e corretivas necessárias;
o Data do laudo;
o Assinatura do profissional responsável técnico, acompanhado do
nº do registro no CREA;



ANEXOS
o Fotos e suas legendas;
o Cópia da Anotação de Responsabilidade Técnica (ART);
o Plantas ou outros documentos.

Elaborado por:

Analisado por:

Professor :

Marcelo Gandra Falcone

Alessandra Aparecida Vieira

Marcelo Gandra Falcone

QUANDO IMPRESSO CONSIDERAR PIRATARIA - CÓPIA NÃO AUTORIZADA
UNINOVE

Rev. B

Engenharia de Avaliações e Perícias
Manutenção Predial e Avaliação de Máquinas
e Equipamentos

16/07/2011
Folha 44/424

7.1.2 Recomendações segundo a norma de procedimentos para elaboração
de laudos de inspeção predial do CREA BA:


A Vistoria Técnica deverá contemplar um diagnóstico geral do estado
de conservação e/ou grau de urgência da correção das anomalias
identificadas nas edificações/equipamentos públicos e privados; os
pontos sujeitos a recuperação, reparos, restauro, reforma,
manutenção ou substituição; as medidas saneadoras a serem
utilizadas e suas respectivas metodologias; os prazos máximos para
conclusão das medidas saneadoras.



Os Relatórios e Laudos de Vistoria Técnica deverão ser elaborados
segundo as disposições da NBR 13.752/96 da ABNT e serem
acompanhados da respectiva Anotação de Responsabilidade Técnica
– ART.



A Inspeção Predial poderá estar classificada de acordo com o grau
de complexidade se enquadrando nas seguintes situações:
- Nível 1: Imóveis térreos, sobrados e edifícios sem elevador,
etc:
Vistoria para a identificação das anomalias aparentes, elaboradas
por profissional habilitado; contando com orientação técnica
pertinente;
– Nível 2: Edifícios Multifamiliares, Edifícios de uso misto –
comerciais e de serviços, Centros Comerciais, Edifícios
Industriais, etc:
Vistoria para a identificação de anomalias aparentes identificadas
com ou sem o auxilio de equipamentos, contendo indicação de
orientações técnicas pertinentes;
– Nível 3: Imóveis com suspeitas de vícios ocultos
significativos:
Vistoria para a identificação de anomalias aparentes, e das
ocultas constatáveis com o auxilio de equipamentos , incluindo
testes e ensaios locais e/ou laboratoriais específicos, elaborada
por profissionais de diversas especialidades, contendo indicação
de orientações técnicas pertinentes.



Análise dos procedimentos de manutenção e conservação: Deverão
ser verificados quais os procedimentos de manutenção e
conservação que estão sendo empregados no imóvel vistoriado e
qual a periodicidade destes procedimentos.

Elaborado por:

Analisado por:

Professor :

Marcelo Gandra Falcone

Alessandra Aparecida Vieira

Marcelo Gandra Falcone

QUANDO IMPRESSO CONSIDERAR PIRATARIA - CÓPIA NÃO AUTORIZADA
UNINOVE

Rev. B

Engenharia de Avaliações e Perícias
Manutenção Predial e Avaliação de Máquinas
e Equipamentos

16/07/2011
Folha 45/424



A complexidade e grau de deterioração do imóvel determinará o
Estado de Conservação e Grau de Urgência da solução das
anomalias do imóvel.



Fotografias: Deverão ser fotografados todas as irregularidades
detectadas perfeitamente identificadas dentro do ambiente vistoriado
e também fotos em detalhe para melhor ilustrar o estado de
conservação e grau de urgência destas.
Além dos ambientes recomenda-se fotografar as fachadas, a vista
frontal e as vias principais de acesso.

Figura 18 – Vistoria Contru 2 ao Teatro Municipal de São Paulo em 24 de setembro de 2008

Elaborado por:

Analisado por:

Professor :

Marcelo Gandra Falcone

Alessandra Aparecida Vieira

Marcelo Gandra Falcone

QUANDO IMPRESSO CONSIDERAR PIRATARIA - CÓPIA NÃO AUTORIZADA
UNINOVE

Engenharia de Avaliações e Perícias
Manutenção Predial e Avaliação de Máquinas
e Equipamentos

8) TÓPICOS
INTEGRADA.

PARA

Rev. B
16/07/2011

CHECK-LIST

DA

Folha 46/424

MANUTENÇÃO

PREDIAL

8.1 Exemplos de Lista de Verificação de inspeção de um prédio Residencial.
8.1.1 Lista sugestão do site Sindico Net para zeladores e porteiros:

Fonte: http://www.sindiconet.com.br/47/informese/guias-sindiconet/check-up-predial/check-up-predial
Elaborado por:

Analisado por:

Professor :

Marcelo Gandra Falcone

Alessandra Aparecida Vieira

Marcelo Gandra Falcone

QUANDO IMPRESSO CONSIDERAR PIRATARIA - CÓPIA NÃO AUTORIZADA
UNINOVE

Rev. B

Engenharia de Avaliações e Perícias
Manutenção Predial e Avaliação de Máquinas
e Equipamentos

16/07/2011
Folha 47/424

8.1.2) Exercício - Sugestão de Material para fazer a vistoria:
1) ELEMENTOS QUE DEVEM CONSTAR NO LAUDO:
a)
1.
2.
b)
3.
4.

5.
6.
7.
8.

Da capa
Identificação do solicitante:
Identificação do autor do laudo e do tipo de contratação
Do conteúdo
Sumario
Classificação do objeto da inspeção:
 Localização;
 Data da Diligência;
 Descrição Técnica do objeto:
 Tipologia e Padrão Construtivo:
 Utilização e Ocupação:
 Idade da edificação
Nível utilizado na inspeção;
Documentação analisada.
Critério e Metodologia adotada;

c)
9.

Das informações :
Lista de verificação dos elementos construtivos e equipamentos vistoriados com a
descrição e localização das respectivas anomalias e falhas,
10.
Classificação e análise das anomalias e falhas quanto ao grau de risco (Crticidade) e
Indicação da ordem de prioridade.
11.
Sugestões de tratamento da anomalia e ordem de grandeza dos custos em CUB´s
d)
12.
13.
14.
15.
16.
17.

Das Conclusões
Classificação do estado de manutenção geral e condições de uso do imóvel;
Lista de recomendações prioritárias de Manutenção e Obras;
Lista de recomendações gerais e sustentabilidade;
Recomendação do prazo para nova Inspeção Predial;
Data do laudo;
Assinatura do(s) profissional (ais) responsável (eis), acompanhado do Nº. do CREA

e)
18.
19.
20.
21.
22.

Dos anexos
Relatório Fotográfico;
Check-List (opcional);
Peças gráficas;
Documentos;
Anotação de Responsabilidade Técnica (ART);

2) CLASSIFICAÇÕES DAS INSPEÇÕES PREDIAIS QUANTO AO NÍVEL DA INSPEÇÃO
NÍVEL 1 : Análises técnicas elaborada por um único profissional habilitado, voltadas a
edificações de pequeno porte, com escadarias ou apenas um elevador.
NÍVEL 2: Análises técnicas procedidas por equipe de no mínimo dois profissionais de diversas
especialidades, eventualmente com o auxilio de equipamentos e/ou aparelhos, consoante à
complexidade dos sistemas construtivos existentes. A Inspeção Predial nesse nível é
elaborada por profissionais habilitados em uma ou mais especialidades.
NÍVEL 3: Equivalente aos parâmetros definidos para a inspeção de NÍVEL 2, acrescida de
consultoria com as prescrições para a reparação das anomalias e falhas constatadas, ou de
consultoria para a melhoria e ajuste dos procedimentos existentes no plano de manutenção.
Elaborado por:

Analisado por:

Professor :

Marcelo Gandra Falcone

Alessandra Aparecida Vieira

Marcelo Gandra Falcone

QUANDO IMPRESSO CONSIDERAR PIRATARIA - CÓPIA NÃO AUTORIZADA
UNINOVE

Rev. B

Engenharia de Avaliações e Perícias
Manutenção Predial e Avaliação de Máquinas
e Equipamentos

16/07/2011
Folha 48/424

3) CLASSIFICAÇÃO DOS GRAUS DE RISCO - Criticidade
Crítico: impacto irrecuperável recomendando intervenção imediata. Os impactos irrecuperáveis
são aqueles que provocam danos contra a saúde e segurança das pessoas e meio ambiente,
perda excessiva de desempenho causando possíveis paralisações, aumento de custos,
comprometimento sensível de vida útil e desvalorização acentuada.
Regular: impacto parcialmente recuperável recomendando programação de curto prazo. Os
impactos parcialmente recuperáveis são aqueles que provocam de perda de funcionalidade
sem prejuízo à operação direta de sistemas, perda pontual de desempenho (possibilidade de
recuperação), deterioração precoce e pequena desvalorização.
Mínimo: impacto recuperável recomendando programação de médio prazo. Os impactos
recuperáveis são aqueles causados por pequenos prejuízos à estética ou atividades
programáveis planejadas, sem incidência ou sem a probabilidade de ocorrência dos riscos
acima expostos, e sem comprometimento do valor imobiliário.
4) DEFINIÇÃO DO ESCOPO (ABRANGÊNCIA)
Fazer uma relação dos sistemas avaliados ou dos locais avaliados
SISTEMA AVALIADO

SIM

1 – Estrutura;
2 – Alvenaria;
3 – Revestimentos;
4 – Impermeabilizações;
5 – Esquadrias;
6 – Cobertura;
7 – Paisagismo;
8 – Instalações:
8.1 – Elétricas:
8.2 – Hidráulicas:
8.3 – Gás:
8.4 – Sistema Proteção contra descargas atmosféricas (SPDA);
8.5 – Telefonia;
8.6 – Automação;
8.7 – Proteção contra incêndio;
8.8 – Ar condicionado;
8.9 – Segurança Patrimonial;
8.10 – Iluminação de emergência;
9 – Maquinas e Equipamentos:
9.1 – Elevadores;
9.2 – Caldeiras;
9.3 – Geradores;
9.4 – Pressurizadores;
9.5 – Bombas e filtros;
Elaborado por:

Analisado por:

Professor :

Marcelo Gandra Falcone

Alessandra Aparecida Vieira

Marcelo Gandra Falcone

QUANDO IMPRESSO CONSIDERAR PIRATARIA - CÓPIA NÃO AUTORIZADA

NÃO
UNINOVE

Rev. B

Engenharia de Avaliações e Perícias
Manutenção Predial e Avaliação de Máquinas
e Equipamentos

16/07/2011
Folha 49/424

9.6 – Automação de Portões
10 – Diversos:
10.1 – Quadras Poliesportivas;
10.2 – Play Ground;
10.3 – Churrasqueiras;
10.4 – Saunas;
10.5 – Equipamentos de Ginástica;
10.6 – Sala de cinema;
10.7 – Heliponto;
10.8 – Adegas;
10.9 – Piscinas;
10.10 – Lixeiras;
11 – OUTROS
11.1
11.2

5) Modelo para um Laudo:
Ao Ilmo Dr
Zigfredo Relapso – Diretor Administrativo da Instituição Cai Cai
1) Objetivo:
Inspeção para elaboração de Plano de Recuperação das condições de Uso das
Instalações da Sala de Aula, sito à Rua das Gorgonzolas Mutantes, 124
esquina com Goteiras Psicodélicas, 133

2) Data e Local da Realização da Diligência:
A diligencia ao local ocorreu em, São Paulo, de
22:00 horas.

de 2010, das 9:00 as

3) Características Edilícias:
O objeto da presente vistoria é uma sala de aula, no 9º andar de uma
edificação. Foi verificado e consignado que o local esta dentro de uma
edificação construída em um terreno de 4.300 m², com 18.900 m² de área
construída total, com 02 subsolos, térreo e 9 pavimentos.
Construção de padrão comercial simples em estrutura metálica com
fechamento de alvenaria.
As edificações estão sendo utilizadas como Instituição de Ensino.
De acordo com a Ficha de Dados Cadastrais do IPTU, disponível no Site da
Prefeitura, a idade da edificação tem 12 Anos de idade.
A Inspeção realizada foi do tipo Nível 2, ou seja, realizada por equipe
multidisciplinar, abrangendo diversos sistemas básicos da sala de aula.
Elaborado por:

Analisado por:

Professor :

Marcelo Gandra Falcone

Alessandra Aparecida Vieira

Marcelo Gandra Falcone

QUANDO IMPRESSO CONSIDERAR PIRATARIA - CÓPIA NÃO AUTORIZADA
UNINOVE

Rev. B

Engenharia de Avaliações e Perícias
Manutenção Predial e Avaliação de Máquinas
e Equipamentos

16/07/2011
Folha 50/424

Durante as vistorias foram apresentados e analisados os seguintes
documentos técnicos e administrativos: Cartão do CNPJ, Manual dos
Elevadores, RIA dos Elevadores, ART da conservadora dos Elevadores.
4) Critérios e Metodologia adotada;
O critério utilizado para elaboração deste laudos de inspeção predial baseia-se
na análise do risco oferecido aos usuários, ao meio ambiente e ao patrimônio,
diante as condições técnicas, de uso, operação e manutenção da edificação,
bem como da natureza da exposição ambiental, com base na ABNT NBR
5674/99: Manutenção de Edificações, da ABNT e na Norma de Inspeção
Predial do IBAPE/1999.

Das informações: Segue no Anexo a lista de verificação (Check List) dos
elementos construtivos e equipamentos vistoriados com a descrição e
localização das respectivas anomalias e falhas, Classificação e análise das
anomalias e falhas quanto ao grau de risco e Indicação de Prioridade de
Manutenção.
5) CONCLUSÂO:
Classificação do estado de manutenção geral e condições de uso do imóvel;
a) Lista com a descrição das anomalias encontradas conforme Lista de
verificação “check-list” anexo, lista com a descrição das prováveis causas das
anomalias encontradas e Lista das recomendações para sanar as anomalias.
b) Classificação do estado de Manutenção Geral:
[
[
[
[
[

] Manutenção Ótima
] Manutenção Normal
] Manutenção Mínima
] Manutenção Deficiente
] Manutenção Inexistente

c) Condições de Uso:
[ ] USO REGULAR – Quando a edificação inspecionada encontra-se ocupada
e utilizada de acordo com o uso previsto no projeto;
[ ] USO IREGULAR – Quando a edificação inspecionada encontra-se ocupada
e utilizada de forma irregular, com o uso divergente do previsto no projeto;
d) Lista de recomendações prioritárias de Manutenção e Obras:



Manutenção:
Recuperação:

Elaborado por:

Analisado por:

Professor :

Marcelo Gandra Falcone

Alessandra Aparecida Vieira

Marcelo Gandra Falcone

QUANDO IMPRESSO CONSIDERAR PIRATARIA - CÓPIA NÃO AUTORIZADA
UNINOVE

Engenharia de Avaliações e Perícias
Manutenção Predial e Avaliação de Máquinas
e Equipamentos









Rev. B
16/07/2011
Folha 51/424

Preservação:
Reabilitação:
Reparo:
Restauração:
Reforço.
Melhorias.
Modernizações

e) Lista de recomendações gerais e sustentabilidade:



Acessibilidade:
Aproveitamento de águas pluviais:

f)Anexos:




Documentos
Check List (não Obrigatório)
Relatório Fotográfico:

f) Recomendação do prazo para nova Inspeção Predial
Recomendação para a próxima inspeção:_________ANOS

Tabela de referencia: LEI COMPLEMENTAR Nº 1.669 DE 05 DE MAIO DE 2004. Lei de Ribeirão Preto (SP)

g) Identificação dos Peritos e Data de Elaboração do Laudo
São Paulo,
Nome do Profissional

Assinatura

Modalidade

de

de 2010
Numero do CREA

Arquiteto
Eng Eletricista
h) ART preenchida e recolhida (paga):
(ART): LINK: http://servonline.creasp.org.br/index.php
Elaborado por:

Analisado por:

Professor :

Marcelo Gandra Falcone

Alessandra Aparecida Vieira

Marcelo Gandra Falcone

QUANDO IMPRESSO CONSIDERAR PIRATARIA - CÓPIA NÃO AUTORIZADA
UNINOVE

Rev. B

Engenharia de Avaliações e Perícias
Manutenção Predial e Avaliação de Máquinas
e Equipamentos

16/07/2011
Folha 52/424

Anexo – DOCUMENTOS ANALISADOS
documento analisado

SIM

1 – Administrativa:
1.1 - Instituição, Especificação e Convenção de Condomínio;
1.2 – Regimento Interno do Condomínio;
1.3 – Manual do Proprietário;
1.4 – Alvará de Construção;
1.5 – Auto de Conclusão;
1.6 – Programa de Prevenção de Riscos Ambientais (PPRA);
1.7 – Auto de Verificação de Segurança (AVS)
1.8 – Auto de Vistoria do Corpo de Bombeiros (AVCB)
1.9 – Plano de Manutenção e Operação e Controle (PMOC)
1.10 – Selos dos Extintores
1.11 – Relatório de Inspeção Anual de Elevadores (RIA);
1.12 – Certificado de treinamento de brigada de incêndio;
1.13 – Atestado do Sistema de Proteção a Descarga Atmosférica - SPDA;
1.14 – Certificado de limpeza e análise química referente à limpeza dos Reservatórios;
1.15 – Ata de instalação do condomínio;
1.16 – Certificado de ensaios de pressurização em mangueiras;
1.17 – Laudos de Inspeção Predial;
1.18 – Alvará de funcionamento;
1.19 – Certificado de Manutenção do Sistema de Segurança;
Elaborado por:

Analisado por:

Professor :

Marcelo Gandra Falcone

Alessandra Aparecida Vieira

Marcelo Gandra Falcone

QUANDO IMPRESSO CONSIDERAR PIRATARIA - CÓPIA NÃO AUTORIZADA

NÃO
UNINOVE

Rev. B

Engenharia de Avaliações e Perícias
Manutenção Predial e Avaliação de Máquinas
e Equipamentos

16/07/2011
Folha 53/424

1.20 – Ficam – Ficha de Inscrição no Cadastro de Manutenção de Sistema de
Segurança;
2 – Técnica:
2.1 – Projeto aprovado;
2.2 – Projeto modificativo;
2.3 – Projeto executivo;
2.4 – Projeto de sondagem;
2.5 – Projeto de fundações, contenções, cortinas e arrimos;
2.6 – Projeto de estruturas;
2.7 – Projeto de formas;
2.8 – Projeto de armação;
2.9 – Projeto de Instalações Prediais:
2.9.1 – Instalações Hidráulico-sanitárias, e de água pluviais;
2.9.2 – Instalações de gás;
2.9.3 – Instalações elétricas, telefonia e Pára-raios (SPDA)
2.10 – Projeto de Impermeabilização;

Anexo – Check list
Edifício:
Idade:
sistema
Descrição/
anomalia
Fachada

Fachada
cerâmica 10x10
com junta de
dilatação.
Ocorreu
desplacamento
pela ruptura do
Cimentcola

End:
Bairro :
CEP:
Numero de Andares:
Nível da Inspeção:
local desempenho Grau Grau de
fotos Obs
de
Manut.
risco
9
Insatisfatorio critico inexistente 1/2
----andar

Segurança
Contra
Incêndio

Pintura

Elétrica
Elaborado por:

Analisado por:

Professor :

Marcelo Gandra Falcone

Alessandra Aparecida Vieira

Marcelo Gandra Falcone

QUANDO IMPRESSO CONSIDERAR PIRATARIA - CÓPIA NÃO AUTORIZADA
UNINOVE

Rev. B

Engenharia de Avaliações e Perícias
Manutenção Predial e Avaliação de Máquinas
e Equipamentos

16/07/2011

Data da Vistoria:
Anexo – Fotografias:

FOTO Nº 1

Folha 54/424

Inspetor:

FOTO Nº 2

Elaborado por:

Analisado por:

Professor :

Marcelo Gandra Falcone

Alessandra Aparecida Vieira

Marcelo Gandra Falcone

QUANDO IMPRESSO CONSIDERAR PIRATARIA - CÓPIA NÃO AUTORIZADA
UNINOVE

Rev. B

Engenharia de Avaliações e Perícias
Manutenção Predial e Avaliação de Máquinas
e Equipamentos

16/07/2011

FOTO Nº 3

FOTO Nº 4

FOTO Nº 5

Folha 55/424

FOTO Nº 6

8.2 Check-list da manutenção do prédio
De acordo com a norma brasileira NBR 5674, as inspeções prediais devem ser
realizadas considerando as condições estabelecidas na Seção 8 - Coleta de
informações. Dentre as considerações dessa seção é importante destacar a do
item 8.4:
“8.4 As inspeções devem ser orientadas por listas de conferência padronizadas
(check-list), elaboradas considerando:
• Roteiro lógico de inspeção das edificações
• Os componentes e equipamentos mais importantes na edificação
• As formas de manifestação esperadas da degradação da edificação
• As solicitações e reclamações dos usuários”.
Elaborado por:

Analisado por:

Professor :

Marcelo Gandra Falcone

Alessandra Aparecida Vieira

Marcelo Gandra Falcone

QUANDO IMPRESSO CONSIDERAR PIRATARIA - CÓPIA NÃO AUTORIZADA
UNINOVE

Rev. B

Engenharia de Avaliações e Perícias
Manutenção Predial e Avaliação de Máquinas
e Equipamentos

16/07/2011
Folha 56/424

8.2.1 Lista sugestão do Site PROCOBRE para manutenção predial :
Check-list da manutenção do prédio
SISTEMA
ELÉTRICO

A cada 6 meses, checar se o sistema de aterramento sofreu
corrosão e se a chegada do fio terra nos apartamentos está em boas
condições.
Verificar se há aquecimento nos fios ou mau contato, que causam
fuga de energia. O quadro de força deve ser mantido lacrado. Uma
empresa especializada deve verificar se o prédio está bem dimensionado
ou se há sobrecarga elétrica.

GÁS

Mudança brusca no valor da conta é sinal de vazamento. A cada
ano um técnico habilitado deve verificar todo o sistema. É importante
conscientizar os moradores a verificar as contas e o aparecimento de
cheiro estranho.

ELEVADORES

É obrigatório ter uma empresa responsável pelos elevadores, que
costuma fazer um contrato mensal de manutenção. Verificar se a
empresa é cadastrada no Contru. Ela deve emitir anualmente o RIA Relatório de Inspeção Anual dos elevadores, com Anotação de
Responsabilidade Técnica do engenheiro responsável.

BOMBAS

O ideal é manter um contrato de manutenção com empresa
idônea, que garanta pronto-atendimento. O zelador deve estar atento a
qualquer ruído anormal no funcionamento da bomba, e solicitar visita da
empresa antes da quebra.

Check-list da manutenção do prédio
GARAGENS

Verificar se a pintura dos canos segue a NR-26, que diz respeito a
sinalização de segurança.
Não permitir a colocação de pneus junto às paredes e manter as
demarcações das vagas pintadas com tinta adequada.
Garantir iluminação adequada (sensores de presença ajudam na
economia de energia).
Fique

atento

ao

aparecimento

de

trincas,

infiltrações

ou

vazamentos.
Para garantir que todos esses itens sejam atendidos, o ideal é uma
Elaborado por:

Analisado por:

Professor :

Marcelo Gandra Falcone

Alessandra Aparecida Vieira

Marcelo Gandra Falcone

QUANDO IMPRESSO CONSIDERAR PIRATARIA - CÓPIA NÃO AUTORIZADA
UNINOVE

Rev. B

Engenharia de Avaliações e Perícias
Manutenção Predial e Avaliação de Máquinas
e Equipamentos

16/07/2011
Folha 57/424

visita diária do zelador às garagens
TOPO DO
PRÉDIO

Inclui pára-raios (verificar se está de acordo com a NBR 5419/2001),
luz-piloto, telhas, calhas e ralos,lajes,guarda-corpo e escadas, casa das
máquinas e barrilete. Pequenos problemas, como ralinhos desencaixados
ou calhas obstruídas por folhas, podem trazer sérias consequências

CAIXA D'ÁGUA

A limpeza anual é obrigatória, mas o ideal é limpar a cada seis
meses. Usar o faxineiro do prédio para esse tipo de serviço parece
economia, mas a caixa pode ser danificada por procedimentos
inadequados. Além disso, se a sujeira for embora pela tubulação, pode
entupir as torneiras do primeiro andar do prédio.

EQUIPAMENTOS
DE SEGURANÇA
PARA COMBATE
À INCÊNDIO

As escadas devem estar livres de cestos de lixo e com os corrimãos
de acordo com a NBR 9077/85. Freqüentemente devem ser verificados o
fechamento, a regulagem e a existência de selo identificando o fabricante
das portas corta-fogo.
Hidrantes e extintores devem ser revisados e recarregados
anualmente.

ÁREAS DE
LAZER

Os fabricantes de produtos químicos para piscina costumam
oferecer treinamentos sobre tratamento da piscina. Se o zelador for o
responsável pela limpeza da piscina, mantenha-o informado sobre o
assunto, e siga sempre as recomendações dos fabricantes quanto ao
armazenamento e manuseio dos produtos.
A cada três meses, o zelador deve verificar se há farpas, ferrugem
ou peças soltas nos brinquedos. Após as férias escolares, é prudente
fazer uma manutenção mais minuciosa.
Mensalmente, verificar os equipamentos dos salões de jogos,
ginástica, festas, da quadra e da área da churrasqueira

Check-list da manutenção do prédio
FACHADAS

A cada 5 anos recomenda-se lavagem da fachada. Para qualquer
serviço de fachada (pintura ou restauro), verifique a idoneidade da
empresa contratada e solicite documentos, como CNPJ e guias de
recolhimento de INSS, FGTS, ISS, entre outros. Os funcionários precisam
trabalhar com Equipamentos de Proteção Individual (EPIs) adequados.
Lembre-se que o síndico é co-responsável em caso de acidentes.

PORTÕES,
INTERFONES,
SISTEMAS
DE
ALARME E CFTV

Manter um contrato único de manutenção para todos esses
equipamentos (inclusive antena coletiva) garante economia para o
condomínio, além de um atendimento mais rápido (deixe claro, em

Elaborado por:

Analisado por:

Professor :

Marcelo Gandra Falcone

Alessandra Aparecida Vieira

Marcelo Gandra Falcone

QUANDO IMPRESSO CONSIDERAR PIRATARIA - CÓPIA NÃO AUTORIZADA
UNINOVE

Rev. B

Engenharia de Avaliações e Perícias
Manutenção Predial e Avaliação de Máquinas
e Equipamentos

16/07/2011
Folha 58/424

contrato, o prazo de atendimento).

8.2.1 Lista sugestão da Cartilha do CONTRU para manutenção predial :

Elaborado por:

Analisado por:

Professor :

Marcelo Gandra Falcone

Alessandra Aparecida Vieira

Marcelo Gandra Falcone

QUANDO IMPRESSO CONSIDERAR PIRATARIA - CÓPIA NÃO AUTORIZADA
UNINOVE

Rev. B

Engenharia de Avaliações e Perícias
Manutenção Predial e Avaliação de Máquinas
e Equipamentos

16/07/2011
Folha 59/424

Lembrando que em vistorias de uso residencial multifamiliar, por
recomendação do CONTRU da PMSP, independente do nível de inspeção
contratado, o inspetor deve recomendar em seu laudo para o responsável pelo
uso, elimine toda e qualquer anomalia, com a assistência de profissionais
habilitados, para que a edificação existente, passe a atender às condições
mínimas de segurança:










As instalações elétricas devem atender à NBR 5.410.
As áreas comuns, por onde existam rotas de fuga, devem possuir
iluminação de emergência, independente da rede geral, que atenda à NBR
10.898.
A edificação deve estar protegida contra descargas elétricas atmosféricas,
nos termos da NBR 5.419.
As escadas devem ser guarnecidas por corrimãos, conforme a NBR 9.077.
Cada pavimento deve possuir, no mínimo, dois extintores, sendo um de
água pressurizada e outro de pó químico seco ou gás carbônico.
Observar também a existência de riscos em áreas específicas, com casas
de máquina, casas de medição e garagens, tudo conforme o Decreto
Estadual 38.069/93 e 46.076/01.
Se existir sistema de hidrantes, ele deve estar em perfeitas condições de
uso, observando-se o estado de mangueiras, bicos, registros, bombas e
reservas de água.

Elaborado por:

Analisado por:

Professor :

Marcelo Gandra Falcone

Alessandra Aparecida Vieira

Marcelo Gandra Falcone

QUANDO IMPRESSO CONSIDERAR PIRATARIA - CÓPIA NÃO AUTORIZADA
UNINOVE

Engenharia de Avaliações e Perícias
Manutenção Predial e Avaliação de Máquinas
e Equipamentos







Rev. B
16/07/2011
Folha 60/424

Não devem existir dutos verticais, outrora usados como lixeiras. Se
existirem, deverão ser lacrados com alvenaria, nos termos do Decreto
32.329/92.
Todos os quadros e equipamentos de combate a incêndio devem estar
sinalizados, bem como as rotas de fuga, conforme o Decreto 32.329/92.
As instalações de gás devem atender ao Decreto 24.714/87.
Deve existir na edificação uma brigada de combate a incêndio, formada por
todos os funcionários do condomínio, nos termos da NBR 14.276.

O cumprimento das normas de segurança da edificação é obrigação do
responsável legal pelo condomínio, que responderá civil e criminalmente por
quaisquer sinistros que vierem a ocorrer na edificação, conforme a Lei 4.591,
de 16 de dezembro de 1964.

Figura 20 – Vistoria Contru 2 ao Grande Premio São Paulo Indy 300 em 14 de abril de 2009

Figura 21 – Vistoria Contru 2 ao Grande Premio São Paulo Indy 300 em 14 de abril de 2009
Elaborado por:

Analisado por:

Professor :

Marcelo Gandra Falcone

Alessandra Aparecida Vieira

Marcelo Gandra Falcone

QUANDO IMPRESSO CONSIDERAR PIRATARIA - CÓPIA NÃO AUTORIZADA
UNINOVE

Rev. B

Engenharia de Avaliações e Perícias
Manutenção Predial e Avaliação de Máquinas
e Equipamentos

16/07/2011
Folha 61/424

9) Orientações técnicas de anomalias.
De acordo com a classificação expostas em 3.5 CLASSIFICAÇÃO DAS
ANOMALIAS E FALHAS as deficiências observadas nas edificações podem ser
classificadas em grupos de ANOMALIAS e FALHAS. Portanto, este Capítulo 9
irá apresentar as principais deficiências e orientações técnicas para a
manutenção conforme o livro texto IBAPE –SP, PUJADAS, F.Z.A.; GOMIDE,
T.L.F.; FAGUNDES, J.C.P. e OUTROS, Inspeção Predial –Check-Up Predial:
Guia da Boa Prevenção. São Paulo: Leud, 2009.
O capítulo 9 também tem por objetivo alertar para os perigos e riscos da
má manutenção, e descreve, de forma genérica e simples, alguns
procedimentos que auxiliam na elaboração de um plano de manutenção.
Os principais sistemas construtivos estão abaixo descritos de forma
simplificada e com explicações gerais sobre suas funcionalidades, a fim de
ilustrar características previstas para o desempenho e, assim, chamar a
atenção da importância das atividades de manutenção para a boa performance
dos sistemas ao longo de sua vida útil.
A perda de desempenho, portanto, incorre na perda da vida útil projetada
ou prevista, redução potencial de acréscimo de sobrevida e agrava riscos do
uso, conforto e segurança dos usuários, ou seja, a falta de manutenção coloca
em risco a habitabilidade da edificação.
Portanto, a utilização de procedimentos e rotinas de manutenção, aliadas
a um planejamento estratégico de gestão dos imóveis, garante, além de um
bom funcionamento dos sistemas, uma sobrevida e uma valorização
imobiliária.

9.1. Sistema estrutural
A inspeção deverá ser restrita aos elementos aparentes - pilares, vigas, lajes,
consoles, cobertura, marquises e juntas de dilatação, reservatórios de água
potável e casa de máquinas e jardineiras em geral, a fim de constatar a
existência de anomalias e falhas, sem uso de ensaios tecnológicos, medições e
outros mecanismos indiretos de aferições, bem como a exposição ambiental
das estruturas, se revestidas ou não, idade e condições de manutenção.
Dependendo das condições de exposição, podem ser recomendadas
investigações mais aprofundadas quanto aos ataques de agentes químicos. É
preciso investigar, também, no local, a ocorrência de intervenções posteriores à
construção original, principalmente as que se referem aos serviços
relacionados a qualquer tipo de reparo, reforço ou obras que resultem em
carregamento adicional à estrutura. Para a tipologia em estudo, deve-se
investigar, também, se já foi realizado algum tipo de monitoramento na
estrutura ligado às cargas dinâmicas, dentre outros ensaios relacionados a
carregamentos.

Elaborado por:

Analisado por:

Professor :

Marcelo Gandra Falcone

Alessandra Aparecida Vieira

Marcelo Gandra Falcone

QUANDO IMPRESSO CONSIDERAR PIRATARIA - CÓPIA NÃO AUTORIZADA
UNINOVE

Rev. B

Engenharia de Avaliações e Perícias
Manutenção Predial e Avaliação de Máquinas
e Equipamentos

16/07/2011
Folha 62/424

A fundação, sempre que houver anomalias relacionadas às trincas e
manifestações típicas de recalques, deverá ter recomendada sua investigação.
Dependendo das anomalias, pode-se sugerir vistoria em dia de jogo, para
verificação preliminar de aspectos relacionados ao comportamento estrutural
em relação a cargas dinâmicas (torcidas), e realização de ensaios
tecnológicos, dentre outras avaliações mais aprofundadas.
As estruturas, em que pese a sua aparente rigidez (imobilidade), caracterizam
sempre sistemas com certo grau de movimentação (deformabilidade). Nesse
sentido, os bens “imóveis” (simples coberturas, galpões, residências, ou
edifícios) são, na realidade e internamente, parcialmente móveis, deformandose dentro de um nível natural, devido às forças induzidas pela gravidade ou por
outros elementos da natureza. As forças induzidas pela gravidade são verticais
(ocorrem no sentido de cima para baixo), compreendendo o peso próprio das
estruturas, das alvenarias, dos revestimentos e as cargas decorrentes do uso
do imóvel, como os pesos dos móveis, dos objetos, das pessoas, etc.

Figura 22 – Esforços Verticais - IBAPE –SP, PUJADAS, F.Z.A.; GOMIDE, T.L.F.; FAGUNDES, J.C.P. e OUTROS, Inspeção
Predial –Check-Up Predial: Guia da Boa Prevenção. São Paulo: Leud, 2009.

Já as forças produzidas pelos elementos da natureza, tais como os ventos, a
terra e a água, são difusas (ocorrem em várias direções).

Figura 23 – Esforços Difusos - IBAPE –SP, PUJADAS, F.Z.A.; GOMIDE, T.L.F.; FAGUNDES, J.C.P. e OUTROS, Inspeção
Predial –Check-Up Predial: Guia da Boa Prevenção. São Paulo: Leud, 2009.
Elaborado por:

Analisado por:

Professor :

Marcelo Gandra Falcone

Alessandra Aparecida Vieira

Marcelo Gandra Falcone

QUANDO IMPRESSO CONSIDERAR PIRATARIA - CÓPIA NÃO AUTORIZADA
UNINOVE

Rev. B

Engenharia de Avaliações e Perícias
Manutenção Predial e Avaliação de Máquinas
e Equipamentos

16/07/2011
Folha 63/424

A atuação conjunta de todas as forças acima citadas introduz sempre, em
maior ou menor extensão, deformações nos sistemas estruturais. Os
elementos responsáveis pela transmissão dos esforços ao solo (apoio) são
chamados fundações.

Figura 24 – Fundações - IBAPE –SP, PUJADAS, F.Z.A.; GOMIDE, T.L.F.; FAGUNDES, J.C.P. e OUTROS, Inspeção Predial
–Check-Up Predial: Guia da Boa Prevenção. São Paulo: Leud, 2009.

As fundações, de acordo com o tipo de solo e o montante da carga que irão
receber da estrutura, podem ser classificadas em duas categorias: diretas (ou
rasas) e profundas.

Figura 25 – Fundações - IBAPE –SP, PUJADAS, F.Z.A.; GOMIDE, T.L.F.; FAGUNDES, J.C.P. e OUTROS, Inspeção Predial
–Check-Up Predial: Guia da Boa Prevenção. São Paulo: Leud, 2009.

Elaborado por:

Analisado por:

Professor :

Marcelo Gandra Falcone

Alessandra Aparecida Vieira

Marcelo Gandra Falcone

QUANDO IMPRESSO CONSIDERAR PIRATARIA - CÓPIA NÃO AUTORIZADA
UNINOVE

Rev. B

Engenharia de Avaliações e Perícias
Manutenção Predial e Avaliação de Máquinas
e Equipamentos

16/07/2011
Folha 64/424

As fundações diretas ou rasas são aquelas executadas imediatamente abaixo
dos baldrames, aí compreendidas as sapatas, os radiers e também as “ brocas
“ (reforços de natureza empírica feitos em baldrames)

Figura 26 – Fundações Rasas - IBAPE –SP, PUJADAS, F.Z.A.; GOMIDE, T.L.F.; FAGUNDES, J.C.P. e OUTROS, Inspeção
Predial –Check-Up Predial: Guia da Boa Prevenção. São Paulo: Leud, 2009.

As fundações profundas são, em geral, executadas com intervenção de
equipamento ou de equipes especializadas, estando aí compreendidos vários
tipos de estacas e os tubulões.

Figura 27 – Fundações Profundas - IBAPE –SP, PUJADAS, F.Z.A.; GOMIDE, T.L.F.; FAGUNDES, J.C.P. e OUTROS,
Inspeção Predial –Check-Up Predial: Guia da Boa Prevenção. São Paulo: Leud, 2009.

As fundações são elementos de fundamental importância na estabilidade dos
edifícios, respondendo por boa parte dos aspectos relacionados à solidez e
segurança dos mesmos.
Devem ser compatíveis com o arranjo estrutural, devendo, por mais simples
que seja a obra, ser projetadas e ter sua execução supervisionada por
profissionais qualificados, qualquer que seja o porte da edificação.
Em edifícios dotados de subsolos ou em regiões com topografia acidentada,
integram o conjunto as estruturas auxiliares denominadas contenção de
confrontantes.

Elaborado por:

Analisado por:

Professor :

Marcelo Gandra Falcone

Alessandra Aparecida Vieira

Marcelo Gandra Falcone

QUANDO IMPRESSO CONSIDERAR PIRATARIA - CÓPIA NÃO AUTORIZADA
UNINOVE

Rev. B

Engenharia de Avaliações e Perícias
Manutenção Predial e Avaliação de Máquinas
e Equipamentos

16/07/2011
Folha 65/424

Estando normalmente em contato direto com o solo, resistem basicamente às
forças horizontais da terra e das águas subterrâneas. Essas estruturas
auxiliares são constituídas de muros de arrimo de vários tipos, como por
exemplo, paredes diafragma e cortinas em concreto armado + perfis metálicos.
As contenções de confrontantes, quando necessárias, são também elementos
de fundamental importância na segurança dos usuários dos edifícios,
merecendo, também, as recomendações acima citadas para as fundações.

Figura 28 – Contenções Confrontantes - IBAPE –SP, PUJADAS, F.Z.A.; GOMIDE, T.L.F.; FAGUNDES, J.C.P. e OUTROS,
Inspeção Predial –Check-Up Predial: Guia da Boa Prevenção. São Paulo: Leud, 2009.

Elaborado por:

Analisado por:

Professor :

Marcelo Gandra Falcone

Alessandra Aparecida Vieira

Marcelo Gandra Falcone

QUANDO IMPRESSO CONSIDERAR PIRATARIA - CÓPIA NÃO AUTORIZADA
UNINOVE

Rev. B

Engenharia de Avaliações e Perícias
Manutenção Predial e Avaliação de Máquinas
e Equipamentos

16/07/2011
Folha 66/424

Quanto às estruturas propriamente ditas, pode-se dizer que existem dois tipos
de sistemas básicos: o sistema reticulado e o autoportante.
No sistema reticulado a transferência de todas as cargas atuantes para as
fundações, quer através dos pisos, quer pelos painéis de alvenaria (paredes), é
feita através de elementos denominados de vigas e pilares.
Viga é uma peça linear, cujo carregamento principal, advindo da laje, distribuise, também igualmente, para os pilares.
Pilar é uma peça linear, carregamentos principais provenientes das vigas são
nele concentrados e distribuídos para as fundações.
No sistema autoportante uma parte ou toda a alvenaria transmite diretamente
as cargas recebidas para as fundações. Qualquer modificação ou remoção de
paredes nesse sistema precisa ser precedido de consulta ao construtor ou a
projeto.
Em ambos os sistemas, o elemento estrutural que recebe a ação direta das
cargas devidas ao uso são as lajes, definidas como peças planas, cujo
carregamento principal é aplicado ao longo de sua superfície.

Figura 29 – Esforços Distribuídos ao longo da Supereficie - IBAPE –SP, PUJADAS, F.Z.A.; GOMIDE, T.L.F.; FAGUNDES,
J.C.P. e OUTROS, Inspeção Predial –Check-Up Predial: Guia da Boa Prevenção. São Paulo: Leud, 2009.

Elaborado por:

Analisado por:

Professor :

Marcelo Gandra Falcone

Alessandra Aparecida Vieira

Marcelo Gandra Falcone

QUANDO IMPRESSO CONSIDERAR PIRATARIA - CÓPIA NÃO AUTORIZADA
UNINOVE

Rev. B

Engenharia de Avaliações e Perícias
Manutenção Predial e Avaliação de Máquinas
e Equipamentos

16/07/2011
Folha 67/424

Edifícios de vários pavimentos são em geral mais freqüentemente construídos
em sistemas reticulados, embora também existam, na prática brasileira,
edifícios altos em sistema autoportante
Por outro lado, casas e pequenos edifícios de até dois pavimentos, com muita
freqüência, são construídos em sistema autoportante, embora também possam
sê-lo em sistemas reticulados.
Em edifícios altos, em particular, é comum o aparecimento de fissuras e trincas
nos andares mais altos devido à ação do vento sobre a estrutura.
É comum, também, em qualquer edificação, o aparecimento de fissuras e
trincas associadas a problemas nas fundações ou nas contenções de
confrontantes.
Fissura é uma abertura em forma de linha que aparece na superfície de
qualquer material sólido, proveniente de ruptura sutil de parte de sua massa,
com espessura de até 0,5 milímetro.
Trinca é uma abertura em forma de linha que aparece na superfície de
qualquer material sólido, proveniente de evidente ruptura de parte de sua
massa, com espessura de 0,5 milímetro até 1,0 milímetro.
Quando a flexibilidade do sistema reticulado, por problemas patológicos,
apresenta riscos surgem as rachaduras e as fendas, ambas de maior
gravidade, se comparadas às fissuras e trincas.
Rachadura é uma abertura expressiva que aparece na superfície de qualquer
material sólido, proveniente de acentuada ruptura de sua massa, podendo-se “
ver” através dela e cuja espessura varia de 1,0 milímetro até 1,5 milímetro.
Fenda é uma abertura expressiva que aparece na superfície de qualquer
material sólido, proveniente de acentuada ruptura de sua massa, causando sua
divisão em partes separadas, com espessura superior de 1,5 milímetro. Ao
deparar-se com anomalias dessa natureza, deve o observador procurar
investigá-las, visando a sua melhor caracterização.

Tipo de abertura

Espessura padrão das aberturas

Fissura

Espessura < 0,5 milímetros

Trinca

O,5 a 1,0 milímetros

Rachadura

1,0 a 1,5 milímetros

Fenda

Espessura > 1,5 milímetros

Itens de Inspeção:
Elaborado por:

Analisado por:

Professor :

Marcelo Gandra Falcone

Alessandra Aparecida Vieira

Marcelo Gandra Falcone

QUANDO IMPRESSO CONSIDERAR PIRATARIA - CÓPIA NÃO AUTORIZADA
UNINOVE

Engenharia de Avaliações e Perícias
Manutenção Predial e Avaliação de Máquinas
e Equipamentos



Rev. B
16/07/2011
Folha 68/424

Identificar se as anomalias encontram-se em elementos estruturais
(lajes, vigas, pilares ou alvenaria portante, arquibancadas, lajes,
consoles, marquises)
o Armadura exposta
o Baixo cobrimento da armadura
o Corrosão de armadura
o Formação de trincas por infiltração
o Formações de trincas por processos de movimentações
estruturais ou sobrecarga
o Deterioração das características físico-químicas do concreto
(formação de estalactites, corrosão, depósito de fuligens,
formação de bolor, carbonatação, etc.)
o Deformações excessivas (flechas, trincas em alvenarias,
deformidades geométricas associadas ou não com trincas, etc.)
o Estado físico de juntas de movimentação estrutural e elementos
vedantes
o Estado físico de aparelhos de apoio (deformação diferencial,
trincas, esmagamentos, etc.)
o Infiltrações de água em geral
o Falhas de concretagem caracterizadas por: segregação do
concreto, ninhos de concretagem, má vibração, concreto poroso
de baixa resistência.



A fundação deverá ser investigada sempre que houver anomalias
relacionadas à: trincas e manifestações típicas de recalques.



É obrigatória a inspeção de pilares que tenham tubulações hidráulicas
anexadas ou embutidas, bem como próximos de caixas de passagem de
águas pluviais, caixas de inspeção de esgotos, reservatórios de água
inferiores do tipo cisterna, sistema de fossa.



Importante a constatação se o nível de lençol freático é alto, ou não, a fim
de verificar eventuais anomalias ligadas às infiltrações por capilaridades em
elementos estruturais.



Dependendo das anomalias constatadas, pode-se sugerir vistoria em dia de
jogo para verificação preliminar de aspectos relacionados a comportamento
estrutural em relação a cargas dinâmicas (torcidas). Também é possível,
que as orientações técnicas no relatório de inspeção predial indiquem
necessidade de realização de ensaios tecnológicos, dentre outras
avaliações mais aprofundadas.



Verificar se a peça lesada está submetida, por algum agente externo
(presença de água, por exemplo) a um processo de deterioração
progressiva;

Elaborado por:

Analisado por:

Professor :

Marcelo Gandra Falcone

Alessandra Aparecida Vieira

Marcelo Gandra Falcone

QUANDO IMPRESSO CONSIDERAR PIRATARIA - CÓPIA NÃO AUTORIZADA
UNINOVE

Engenharia de Avaliações e Perícias
Manutenção Predial e Avaliação de Máquinas
e Equipamentos



Rev. B
16/07/2011
Folha 69/424

Verificar a estabilidade ou progresso da anomalia. Há diversos processos
de controle, sendo os mais práticos e comuns:
o Preenchimento da abertura com selo de gesso. O fissuramento do gesso
indica a continuidade da movimentação;
o Fixação de plaqueta de vidro no local, com marcas de referências,
observando-se o eventual deslocamento desta;
o Marcação dos limites da lesão com lápis grosso ou tinta, observando-se
se estes se alteram com o correr do tempo.

Figura 30 – Controle de Lesão - IBAPE –SP, PUJADAS, F.Z.A.; GOMIDE, T.L.F.; FAGUNDES, J.C.P. e OUTROS, Inspeção
Predial –Check-Up Predial: Guia da Boa Prevenção. São Paulo: Leud, 2009.



Verificar a magnitude da abertura. Recomenda-se que em qualquer caso
onde sejam observadas mais largas do que a espessura de uma unha
(0,5mm) estudo das causas da anomalia. Embora as causas das anomalias
estruturais nem sempre sejam evidentes, deve-se chamar a atenção para
as seguintes origens:
o Acomodação da estrutura:

Figura 31 – Acomodação da Estrutura - IBAPE –SP, PUJADAS, F.Z.A.; GOMIDE, T.L.F.; FAGUNDES, J.C.P. e OUTROS,
Inspeção Predial –Check-Up Predial: Guia da Boa Prevenção. São Paulo: Leud, 2009.

o Ausência de verga e contra verga:

Elaborado por:

Analisado por:

Professor :

Marcelo Gandra Falcone

Alessandra Aparecida Vieira

Marcelo Gandra Falcone

QUANDO IMPRESSO CONSIDERAR PIRATARIA - CÓPIA NÃO AUTORIZADA
UNINOVE

Rev. B

Engenharia de Avaliações e Perícias
Manutenção Predial e Avaliação de Máquinas
e Equipamentos

16/07/2011
Folha 70/424

Figura 32 – Ausência de Verga - IBAPE –SP, PUJADAS, F.Z.A.; GOMIDE, T.L.F.; FAGUNDES, J.C.P. e OUTROS, Inspeção
Predial –Check-Up Predial: Guia da Boa Prevenção. São Paulo: Leud, 2009.

o Esmagamento de elementos construtivos

Figura 33 – Esmagamento - IBAPE –SP, PUJADAS, F.Z.A.; GOMIDE, T.L.F.; FAGUNDES, J.C.P. e OUTROS, Inspeção
Predial –Check-Up Predial: Guia da Boa Prevenção. São Paulo: Leud, 2009.

o Rotação

Figura 34 – Rotação - IBAPE –SP, PUJADAS, F.Z.A.; GOMIDE, T.L.F.; FAGUNDES, J.C.P. e OUTROS, Inspeção Predial –
Check-Up Predial: Guia da Boa Prevenção. São Paulo: Leud, 2009.

o Escorregamento de solo
Elaborado por:

Analisado por:

Professor :

Marcelo Gandra Falcone

Alessandra Aparecida Vieira

Marcelo Gandra Falcone

QUANDO IMPRESSO CONSIDERAR PIRATARIA - CÓPIA NÃO AUTORIZADA
UNINOVE

Rev. B

Engenharia de Avaliações e Perícias
Manutenção Predial e Avaliação de Máquinas
e Equipamentos

16/07/2011
Folha 71/424

Figura 35 – Escorregamento de Solo - IBAPE –SP, PUJADAS, F.Z.A.; GOMIDE, T.L.F.; FAGUNDES, J.C.P. e OUTROS,
Inspeção Predial –Check-Up Predial: Guia da Boa Prevenção. São Paulo: Leud, 2009.

o Erosão e descalçamento de fundações

Figura 36 – Erosão nas Fundações - IBAPE –SP, PUJADAS, F.Z.A.; GOMIDE, T.L.F.; FAGUNDES, J.C.P. e OUTROS,
Inspeção Predial –Check-Up Predial: Guia da Boa Prevenção. São Paulo: Leud, 2009.

o Cisalhamento: fadiga, efeitos térmicos, presença de vibrações,

Figura 37 – Cisalhamento por esforços externos - IBAPE –SP, PUJADAS, F.Z.A.; GOMIDE, T.L.F.; FAGUNDES, J.C.P. e
OUTROS, Inspeção Predial –Check-Up Predial: Guia da Boa Prevenção. São Paulo: Leud, 2009.

Elaborado por:

Analisado por:

Professor :

Marcelo Gandra Falcone

Alessandra Aparecida Vieira

Marcelo Gandra Falcone

QUANDO IMPRESSO CONSIDERAR PIRATARIA - CÓPIA NÃO AUTORIZADA
UNINOVE

Rev. B

Engenharia de Avaliações e Perícias
Manutenção Predial e Avaliação de Máquinas
e Equipamentos

16/07/2011
Folha 72/424

o Dano excepcional provocado pela natureza
o Conservação de Estruturas de Concreto



Verificar corrosão. Quanto à corrosão das armaduras deve-se direcionar
mais atenção:
o À região da estrutura que estiver submetida a ciclos de molhagem
e secagem;
o estrutura voltada para a fachada, especialmente os elementos
que retêm umidade;
o laje descoberta;
o pé de pilar;
o locais confinados, como garagem;
o Juntas de dilatação.
o Ganchos de manutenção (balancins).
o Observação: Muitas vezes existe a necessidade de remoção do
revestimento e do concreto para melhor visualização da
manifestação patológica. Deve ser previamente acordado com o
síndico.



A fundação deverá ser investigada sempre que houver indicadores, tais
como trincas e manifestações típicas de recalques;
o É obrigatória a inspeção de pilares que tenham tubulações anexadas
e juntas as caixas de passagem;
o Verificação das localizações do sistema de fossa, filtro e reservatório
inferior;
o Verificação do nível do lençol freático.



Umidade em sub-solos:
o regiões próximas a reservatórios inferiores
o regiões próximas a fossas sépticas
o regiões próximas a tubulações de água, esgoto, incêndio e gás



Micro-ambiente criado por sistema finais de esgoto:
o sumidouros
o valas de infiltração
o caixas de visita - águas pluviais
o sistema de drenagem


Identificar se as anomalias encontram-se em Cobertura, marquises e
últimos pavimentos. Nesses locais, importante verificar os seguintes
elementos:
o Existência de calhas, caimentos, número de coletores pluviais;
o Condições físicas dos telhados, telhas emadeiramento,
principalmente em relação à fixação de telhas e pontos de
infiltração;

Elaborado por:

Analisado por:

Professor :

Marcelo Gandra Falcone

Alessandra Aparecida Vieira

Marcelo Gandra Falcone

QUANDO IMPRESSO CONSIDERAR PIRATARIA - CÓPIA NÃO AUTORIZADA
UNINOVE

Rev. B

Engenharia de Avaliações e Perícias
Manutenção Predial e Avaliação de Máquinas
e Equipamentos

16/07/2011
Folha 73/424

o Existência de fissuras de origem térmica em alvenarias, ligações
entre alvenarias e estrutura, além dos revestimentos;
o Condições do sistema de impermeabilização, principalmente
quanto ao seu desempenho e a presença de infiltrações em lajes,
arquibancadas, etc.;
o Condições de isolamento térmico se houver;


Reservatórios de água potável e casa de máquinas
o Vistoriar os reservatórios, inferior e superior, e verificar a existência
de trincas, descolamentos de manta e deterioração de sistemas de
impermeabilização, corrosão de armadura, desplacamentos, etc.;
o Verificar existência de vazamentos em geral;
o Nas casas de máquinas, verificar fixação dos ganchos na laje de
coberta;
o Verificar existência de trincas na ligação; da estrutura de concreto
armado da laje de coberta e alvenarias;



Jardineiras em geral
o Verificar existência de infiltrações;
o Verificar existência de impermeabilização e sua integridade;
o Verificar existência de condensação.



Juntas de dilatação
o Verificar as condições atuais do elastômero;
o Verificar obstruções com acabamentos;
o Verificar oxidação e corrosão de armadura nas faces de difícil
acesso.

Recomendação:
O concreto após seu preparo, apresenta um Ph de 12,5 (Ph alcalino), com o
decorrer do tempo, estando a estrutura exposta aos agentes da natureza
existentes na atmosfera, tais como: poluição, sulfatos, maresia, gases, depósito
de fuligens ácidas que atuam diretamente sobre a superfície do concreto,
paulatinamente vão neutralizando os componentes básicos do concreto
(hidróxido de cálcio), transformando-se em componentes neutros (sulfato e
carbonato de cálcio), reduzindo o Ph do concreto.
Essa redução de Ph implica no ataque ácido às armaduras, dando origem a
formação de óxido de ferro o que provoca aumento na dimensão da secção do
aço, expulsando a camada superficial do concreto (cobrimento), formando
fissuras, além de deixar a armadura exposta. Em curto prazo, esse fenômeno
pode provocar acidentes, no caso do desplacamento do concreto ocorrer em
pontos altos da estrutura de um edifício, projetando porções de concreto na
área adjacente. Nesse caso recomenda-se a remoção do material solto como
providência imediata, evitando sua queda até que a estrutura venha a ser
convenientemente reparada e protegida. Em longo prazo, com o agravamento
Elaborado por:

Analisado por:

Professor :

Marcelo Gandra Falcone

Alessandra Aparecida Vieira

Marcelo Gandra Falcone

QUANDO IMPRESSO CONSIDERAR PIRATARIA - CÓPIA NÃO AUTORIZADA
UNINOVE

Rev. B

Engenharia de Avaliações e Perícias
Manutenção Predial e Avaliação de Máquinas
e Equipamentos

16/07/2011
Folha 74/424

dos danos, pode-se chegar até ao comprometimento da estrutura e sua
reparação será cada vez mais profunda e mais onerosa.
Para edifícios com mais de 10 anos de construído deve ser realizada inspeção
nos elementos de fundação (sapatas ou blocos), independentemente de
apresentarem sintomas ou não na superestrutura (Amostragem de 30%, no
mínimo, das sapatas ou blocos e pescoços de pilares)
Outras questões de corrosão de armaduras dos elementos de concreto armado
podem estar relacionadas às infiltrações de água provenientes de deficiências
ou inexistências de sistema de impermeabilização em jardineiras, áreas
externas de edifícios com subsolos, reservatórios de água, juntas de dilatação
estrutural etc.
No tocante às infiltrações de águas, sejam elas pluviais ou potáveis, alteram as
características físico-químicas do concreto, abaixando o pH dos elementos,
proporcionando ataques às armaduras e, consequentemente, formações de
fissuras, de estalactites etc.
Vale ressaltar que, na maioria das edificações com subsolos, existem as
infiltrações de água próximas às juntas de dilatação ou mesmo junto a um ralo,
abaixo de uma jardineira etc. Muitas vezes, a recomendação técnica pertinente
para a correção dessas anomalias não reside somente na correção de
sistemas de impermeabilização; é necessário recuperar o concreto armado do
local com intervenção especializada, a fim de conter o avanço da corrosão das
armaduras e da deterioração do concreto, restabelecendo as condições da
peça.

Figura 38 - Vista de uma junta de dilatação estrutural com infiltrações de água, além de deterioração estrutural. Edifício
com aproximadamente 30 anos.

Esse restabelecimento deverá observar: a remoção de camadas de concreto
deterioradas e carbonatadas, limpezas, aplicação de argamassas especiais,
Elaborado por:

Analisado por:

Professor :

Marcelo Gandra Falcone

Alessandra Aparecida Vieira

Marcelo Gandra Falcone

QUANDO IMPRESSO CONSIDERAR PIRATARIA - CÓPIA NÃO AUTORIZADA
UNINOVE

Rev. B

Engenharia de Avaliações e Perícias
Manutenção Predial e Avaliação de Máquinas
e Equipamentos

16/07/2011
Folha 75/424

verificações de secção de armadura, que deverão ser feitas e especificadas por
profissional especializado para a recuperação ou reforço da estrutura.
O fenômeno acima exposto, envolvendo a corrosão de armaduras e,
consequentemente, a formação de fissuras, em curto prazo pode provocar
acidentes, no caso de o desplacamento do concreto ocorrer em pontos altos da
estrutura de um edifício, projetando as porções de concreto em área adjacente.
Nesse caso, recomenda-se a remoção do material solto como providência
imediata, evitando sua queda até que a estrutura venha a ser
convenientemente reparada e protegida.
Em longo prazo, com o agravamento dos danos, pode-se chegar até ao
comprometimento da estrutura e sua reparação será cada vez mais profunda e
mais onerosa, ressaltando-se, ainda, que os elementos estruturais poderão
perder suas capacidades resistivas, causando ruínas ou colapsos na estrutura.
Observa-se, ainda, como um fator característico dos elementos em concreto. A
capacidade de absorção capilar do mesmo, em função de sua porosidade e
estrutura interna. Essa característica natural auxilia nas propagações de
infiltrações e absorções de elementos nocivos a essas estruturas, sendo
importante, sob o aspecto da conservação e manutenção, o controle dessa
absorção capilar do concreto.
A absorção capilar pode ser controlada mediante tratamento superficial com
hidrorrepelentes, hidrofugantes e tamponamento de poros, conforme o caso e
necessidade. Esse tratamento forma uma barreira reduzindo a absorção e o
umedecimento do concreto, procurando:






Diminuir a circulação do vapor de água;
Diminuir a taxa de absorção de água;
Não captar ou aderir sujeiras facilmente;
Não alterar suas características pela ação de raios solares durante sua
vida útil projetada;
Prolongar a vida útil da estrutura.

Pode-se concluir que o tratamento do concreto, além de cumprir o objetivo
estético, atua como componente na durabilidade e proteção da estrutura.

Deve-se considerar que cada sistema de proteção existente no mercado tem
uma vida útil, desde que feita a manutenção preventiva periódica de lavagem
das estruturas aparentes.
Essa manutenção preventiva prolonga a vida útil do sistema protetor,
garantindo um benefício maior, a um custo menor, trazendo vantagens tanto
sob o ponto de vista técnico, como econômico. A recuperação de concreto
Elaborado por:

Analisado por:

Professor :

Marcelo Gandra Falcone

Alessandra Aparecida Vieira

Marcelo Gandra Falcone

QUANDO IMPRESSO CONSIDERAR PIRATARIA - CÓPIA NÃO AUTORIZADA
UNINOVE

Rev. B

Engenharia de Avaliações e Perícias
Manutenção Predial e Avaliação de Máquinas
e Equipamentos

16/07/2011
Folha 76/424

armado aparente ou não poderá observar em linhas genéricas especificadas
por empresa especializada, as seguintes orientações quanto às deteriorações
decorrentes de infiltrações de água:
 Impermeabilização das lajes de cobertura refeitas com tratamento de
todas as juntas de dilatação. Depois de sanados os problemas relativos
à presença de infiltrações de água, as estruturas de concreto aparentes
internas e externas, bem como aquelas revestidas que já apresentam
manchas amarronzadas da corrosão de armadura, desplacamentos,
fissurações etc., deverão ser restauradas;
 Remoção de todo o concreto desplacado e sem aderência;
 Verificações quanto à camada e espessura de cobrimentos, tal que
devem ser obedecidos os parâmetros da norma;
 Verificação das profundidades de carbonatação, por teste de indicação
de pH (indicador – fenoftaleína);
 Remoção do concreto carbonatado e verificação da extensão da
corrosão das barras de aço, bem como suas profundidades (só
armadura de pele ou armações principais);
 Remoção do óxido de ferro, produto da corrosão, pelo processo
abrasivo, e verificação das secções de aço resultantes;
 Observação das perdas maiores de secção de aço acima de 10% e
observação da necessidade de remoção de profundidades muito
acentuadas de concreto, sendo assim, necessidade de se calcular
projetos de escoramentos e resistências residuais dos elementos
estruturais;
 Verificação da necessidade de realizar ponte de aderência química entre
camadas de concreto a serem recuperadas;
 Aplicação de inibidores de corrosão, por exemplo: base zinco, nas
barras de aço;
 Verificação de necessidade de estucamentos e aumento de cobrimentos
mínimos em trechos onde não existem os mesmos, conforme determina
a norma;
 Limpeza geral de toda a estrutura, remoção de manchas de fuligem e
microrganismos, lavagem geral com detergente neutro, estucamentos
pontuais para recomposição de superfícies e aplicação de verniz base
acrílico para áreas externas e base epóxi para áreas internas,
considerando o concreto armado aparente;
Para concreto armado revestido, realizar a recomposição do revestimento,
verificando sua aderência ao concreto, bem como as camadas periféricas
antigas; dependendo das condições gerais do revestimento, formações de
fissuras e aderências, há necessidade de remoção completa do revestimento
no pano de concreto recuperado, a fim de se executar novo revestimento no
local.

Elaborado por:

Analisado por:

Professor :

Marcelo Gandra Falcone

Alessandra Aparecida Vieira

Marcelo Gandra Falcone

QUANDO IMPRESSO CONSIDERAR PIRATARIA - CÓPIA NÃO AUTORIZADA
UNINOVE

Rev. B

Engenharia de Avaliações e Perícias
Manutenção Predial e Avaliação de Máquinas
e Equipamentos

16/07/2011
Folha 77/424

9.2 Sistema de impermeabilização

A inspeção deverá ser restrita à verificação com interface com sistemas
estrutural, vedação e revestimentos.
9.2.1. Descrição e finalidade do sistema
A alvenaria pode ser entendida como um subsistema da edificação, constituída
por elementos que compartimentam e definem os ambientes.
As alvenarias servem também de suporte e proteção para as instalações da
edificação, quando embutidas, e criam as condições de habitabilidade para a
edificação.
As alvenarias também são utilizadas na elevação dos muros de divisa, bem
como na construção de alguns tipos de jardineira.
As alvenarias podem dividir ambientes internos da edificação ou, ainda, compor
as fachadas.
Chama-se alvenaria de vedação aquela cuja finalidade principal é o
fechamento de vão, sem função estrutural.

Elaborado por:

Analisado por:

Professor :

Marcelo Gandra Falcone

Alessandra Aparecida Vieira

Marcelo Gandra Falcone

QUANDO IMPRESSO CONSIDERAR PIRATARIA - CÓPIA NÃO AUTORIZADA
UNINOVE

Rev. B

Engenharia de Avaliações e Perícias
Manutenção Predial e Avaliação de Máquinas
e Equipamentos

16/07/2011
Folha 78/424

9.2.2. Descrição de alguns dos tipos de alvenarias mais utilizados:
1. ALVENARIA CONVENCIONAL
A alvenaria convencional pode ser entendida como um componente da
edificação executado pela união entre tijolos ou blocos por juntas de
argamassa, formando um conjunto rígido e coeso.
Os materiais mais utilizados são os blocos cerâmicos ou em concreto.

2. ALVENARIA ESTRUTURAL
A alvenaria estrutural é aquela que possui características de resistência a
esforços solicitantes relacionados aos carregamentos das edificações.
Normalmente, quando empregadas, dispensam as estruturas convencionais
em concreto armado.
Para esse tipo de vedação, empregam-se blocos especiais em cerâmica ou
concreto.
O processo construtivo desse tipo de alvenaria requer cuidados especiais
quanto à amarração dos blocos, espaçamentos dos mesmos, além de outros
detalhes técnicos previstos em projeto específico.
3. ALVENARIA DRYWALL
Basicamente as paredes funcionam por uma estrutura de perfis de aço
zincado, constituídos de guias horizontais e montantes verticais sobre os
quais são parafusadas chapas de gesso acartonado em uma ou mais
camadas, com parafusos fosfatizados especiais, o que evita a oxidação.
Após o tratamento das juntas das chapas, as superfícies das paredes tornamse monolíticas, planas e lisas, prontas para receber qualquer tipo de
acabamento, como: pintura, papel de parede, cerâmica, azulejo, laminados
plásticos etc.
Uma das características das alvenarias executadas em Drywall é a de permitir
a instalação de material isolante acústico, entre as placas, durante a sua
montagem.
Quanto à sua finalidade, observam-se características semelhantes às dos
outros tipos abordados neste item. Ressalva-se a praticidade na execução
desse sistema.
As alvenarias em Drywall somente devem ser usadas em ambientes internos,
e quando empregadas em ambientes úmidos, tais como cozinhas e banheiros,
deve-se empregar chapas específicas.

9.2.3. Principais anomalias e falhas
Elaborado por:

Analisado por:

Professor :

Marcelo Gandra Falcone

Alessandra Aparecida Vieira

Marcelo Gandra Falcone

QUANDO IMPRESSO CONSIDERAR PIRATARIA - CÓPIA NÃO AUTORIZADA
UNINOVE

Rev. B

Engenharia de Avaliações e Perícias
Manutenção Predial e Avaliação de Máquinas
e Equipamentos

16/07/2011
Folha 79/424

As anomalias e falhas mais comuns nas alvenarias acima citadas são:
1.
2.
3.
4.
5.
6.

Trincas na região do encunhamento;
Trincas nos encontros de alvenarias com a estrutura;
Trincas na quina dos vãos de portas e janelas;
Trincas no encontro de paredes;
Destacamento de muretas em jardineiras;
Trincas na base das paredes por defeito na impermeabilização dos
alicerces;
7. A atuação de sobrecarga localizada, podendo provocar a ruptura dos
componentes de alvenaria na região de aplicação de carga e/ou o
aparecimento de fissuras inclinadas a partir do ponto de aplicação;
8. Muros, peitoris e platibandas que não estejam convenientemente protegidos
por rufos poderão apresentar fissuras na sua parte superior, devido à
absorção de água (chuvas), podendo ocorrer o destacamento do
revestimento;
9. A movimentação térmica da estrutura pode causar destacamentos entre a
alvenaria e a própria estrutura;
10. Os muros muito extensos podem apresentar fissuras verticais com
aberturas da ordem de 2 a 3 mm. Em função da natureza dos componentes
de alvenaria, as fissuras manifestam-se a cada 4 ou 5 m, podendo ocorrer
nos encontros da alvenaria com os pilares ou mesmo no corpo da alvenaria;
11. As movimentações térmicas diferenciadas entre a platibanda e o corpo do
edifício poderão resultar no destacamento da platibanda ou na formação de
fissuras inclinadas na extremidade da mesma;
12. Deformações excessivas da estrutura, ocasionando esforços de
compressão nas alvenarias com conseqüente fissuração.

Elaborado por:

Analisado por:

Professor :

Marcelo Gandra Falcone

Alessandra Aparecida Vieira

Marcelo Gandra Falcone

QUANDO IMPRESSO CONSIDERAR PIRATARIA - CÓPIA NÃO AUTORIZADA
UNINOVE

Rev. B

Engenharia de Avaliações e Perícias
Manutenção Predial e Avaliação de Máquinas
e Equipamentos

16/07/2011
Folha 80/424

9.2.3. Recomendações e orientações técnicas
De maneira geral, tratando-se de alvenarias, é sempre recomendável que
antes de se perfurar as paredes sejam consultados os projetos e
detalhamentos contidos no manual do proprietário, o que evita a perfuração de
tubulações de água, energia elétrica ou gás, nelas embutidas.
Para o caso de edificações com alvenaria estrutural, as paredes não poderão
ser alteradas de posição ou demolidas, pois, conforme já mencionado, fazem
parte da estrutura da edificação.
Como recomendações quanto à utilização das alvenarias, é importante se
observar os seguintes aspectos, que visam a não ocorrência de problemas:
1. Para melhor fixação de peças ou acessórios, em alvenarias, usar
apenas parafusos com buchas especiais;
2. NÂO sobrecarregar as paredes internas de Drywall, devendo ser
observados os limites de carregamento previstos pelo fornecedor, bem
como o disposto no manual do proprietário;
3. Procurar manter os ambientes bem ventilados. Nos períodos de inverno
ou de chuva poderá surgir mofo nas paredes, decorrente de
condensação de água por deficiente ventilação (principalmente quando
houver armários embutidos junto à parede externa);
4. Observar a ocorrência de infiltrações, pois a ação de águas sobre os
elementos da vedação pode ocasionar fissuras, além de proliferaçã de
microorganismos nos revestimentos dessas vedações.
Como recomendações e orientações sobre a manutenção ou reparação,
destacam-se que:
1. Os destacamentos entre pilares e paredes deverão ser recuperados,
observando sempre se a fissura instalada entre esses elementos é ativa
ou passiva. Muitas vezes esses destacamentos são originários de
problemas construtivos em decorrência da falta de elementos de reforço
nos revestimentos;
2. Considerando as paredes em Drywall, os serviços de manutenção e
reparos deverão seguir as recomendações básicas distintas para:
a) reparos em pequenos e fissuras;
b) reparos em trincas;
c) aberturas/fechamento para manutenção;
3. Fundamentalmente, a incidência de fissuras deverá ter as causas
exaustivamente pesquisadas pelo profissional habilitado, para que a
prescrição dos reparos tenha a eficiência e a longevidade esperadas.

Elaborado por:

Analisado por:

Professor :

Marcelo Gandra Falcone

Alessandra Aparecida Vieira

Marcelo Gandra Falcone

QUANDO IMPRESSO CONSIDERAR PIRATARIA - CÓPIA NÃO AUTORIZADA
UNINOVE

Rev. B

Engenharia de Avaliações e Perícias
Manutenção Predial e Avaliação de Máquinas
e Equipamentos

16/07/2011
Folha 81/424

Observa-se, por fim, neste Capítulo, que as anomalias mais comuns aqui
citadas poderão estar ligadas a aspectos construtivos, muitas vezes
relacionados a problemas decorrentes em outros sistemas, tais como:
estruturas, fundações etc.
Considerados aspectos da boa manutenção e uso das vedações, ressalta-se a
necessidade de se observar os aspectos de perfurações, alterações de posição
de alvenarias, sobrecargas devido à fixação de estantes, prateleiras, armários
etc., além de questões relacionadas à boa manutenção dos revestimentos
aplicados sobre essas vedações, sejam esses em argamassa, gesso e/ou
pintura.
As alvenarias externas deverão ter a sua pintura mantida sempre em bom
estado de manutenção/conservação, uma vez que a pintura é a única barreira
contra a ação de intempéries.

Figura 39 – Queda parcial de Parede estrutural – Foto Contru 2

Elaborado por:

Analisado por:

Professor :

Marcelo Gandra Falcone

Alessandra Aparecida Vieira

Marcelo Gandra Falcone

QUANDO IMPRESSO CONSIDERAR PIRATARIA - CÓPIA NÃO AUTORIZADA
UNINOVE

Rev. B

Engenharia de Avaliações e Perícias
Manutenção Predial e Avaliação de Máquinas
e Equipamentos

16/07/2011
Folha 82/424

9.3. Sistema de Revestimentos

9.3.1. Descrição e finalidade do sistema
O sistema de revestimento corresponde ao acabamento final de uma
edificação, sendo a parte que se apresenta mais visível, com a finalidade
principal de proteção de paredes, pisos e tetos, incluídos os forros.
A função protetora é a que mais se destaca pela sua importância, pois visa a
resguardar as superfícies a serem revestidas contra os agentes facilitadores da
deterioração. Dentre esses agentes podem ser citados: a infiltração de água de
chuva, da água do solo, água de uso e/ou de manutenção, além da ação de
ventos, temperatura e umidade do ar, ação de fungos, ataque de roedores e
outros agentes de carga, de uso e de sobrecarga.
Além disso, o revestimento também cumpre a função estética, ligada ao
conforto visual, envolvendo ainda questões de gosto pessoal, vindo a se
construir um verdadeiro elemento de valorização do empreendimento. É
baseado em uma diversidade muito grande de materiais, podendo ser
composto por: argamassa, gesso, resinas, cerâmica, madeira, metal, plástico,
vidro, papel, pedra etc.
A escolha do tipo de revestimento depende, dentre outros fatores: da atmosfera
local, do tipo de ambiente (interno ou externo), das condições de utilização, do
tipo de base (metálica, de madeira, cimentícia, cerâmica etc.). O modo e
especificação de preparo da base que receberá o revestimento são aspectos
fundamentais para seu bom desempenho e aderência, evitando diversos
problemas.
9.3.2. Principais anomalias e falhas
Em linhas gerais, dois dos principais tipos de revestimentos utilizados nas
construções podem ser citados, a argamassa e a cerâmica; importante
destacar que, em argamassa, a definição correta do traço ou mistura dos
matérias utilizados possibilitam a integridade e favorecem a longevidade do
revestimento, evitando anomalias do tipo: fissuras de retração e pulverulências.
Em revestimentos cerâmicos, deve-se observar o correto dimensionamento das
juntas de trabalho, além do uso correto de argamassa colantes e
desempenadeiras, evitando assim os desplacamentos e descolamentos. Para
os revestimentos cerâmicos cabe destacar, também, que aspectos de
manutenção nos rejuntes e materiais de preenchimento das juntas são
importantes para prevenir a não infiltração de água, em casos de superfícies de
fachadas, áreas externas, áreas molhadas etc. A infiltração poderá provocar
problemas como manchamentos diversos, perda de aderência, deslocamentos,
desplacamentos, além de fissuras.
Elaborado por:

Analisado por:

Professor :

Marcelo Gandra Falcone

Alessandra Aparecida Vieira

Marcelo Gandra Falcone

QUANDO IMPRESSO CONSIDERAR PIRATARIA - CÓPIA NÃO AUTORIZADA
UNINOVE

Rev. B

Engenharia de Avaliações e Perícias
Manutenção Predial e Avaliação de Máquinas
e Equipamentos

16/07/2011
Folha 83/424

Pisos
Os pisos devem ter caimento adequado, quando se tratar de áreas molháveis
ou laváveis, para se evitar os indesejáveis empoçamentos e infiltrações. Para
casos de áreas sujeitas à ação direta de águas, seja pluvial ou não, deve haver
os pontos de ralos para a captação dessas águas.
As escadas devem ter proteção antiderrapante; inclusive os pisos em áreas
externas não devem favorecer as condições de escorregamento, devendo,
também, ter características antiderrapantes.
A presença de manchas de ordens diversas, decorrentes de umidade
ascendente (proveniente do solo) nos revestimentos em geral, é ocasionada
principalmente pela deficiência da impermeabilização/drenagem das bases.
Há manchas de eflorescências em determinados pisos, principalmente os de
áreas externas, localizadas entre placas de revestimentos, que podem ser
causadas por deficiências de caimentos do sistema de impermeabilização,
empoçamentos de água e infiltrações. Essas manchas podem ser removidas
com produtos específicos, porém sempre retornarão, pois sua causa está
relacionada a fatores internos da edificação. Observa-se que, nesses casos,
poderá haver a perda de aderência dos revestimentos e conseqüente
deslocamento.
Os deslocamentos de revestimentos podem estar relacionados à utilização de
materiais inadequados, mão-de-obra e fiscalização deficiente, bem como pela
utilização de ferramentas e equipamentos impróprios, em desobediência às
recomendações dos fabricantes e das normas. Podem estar relacionados,
também, a problemas na execução das bases, onde são aplicados com falta de
procedimentos de limpeza, dentre outros fatores.
Os deslocamentos também podem ocorrer em função de formações de fissuras
decorrentes de aspectos relacionados a outros sistemas construtivos, como
estruturas, fundações etc.
Em extensões grandes de pisos, poderão surgir deslocamentos ou
destacamentos devido a problemas relacionados à falta ou deficiência na
juntas de trabalho do revestimento escolhido.
As juntas e derivados, incluídos os próprios rejuntes, são causadores de
incidência de diversas anomalias, quer pela sua ausência, conforme
mencionado acima, quer pela sua especificação ou execução incorreta. Além
disso, sua manutenção deve ser motivo de cuidados específicos, seguindo a
orientação técnica de fabricantes e construtores.

Elaborado por:

Analisado por:

Professor :

Marcelo Gandra Falcone

Alessandra Aparecida Vieira

Marcelo Gandra Falcone

QUANDO IMPRESSO CONSIDERAR PIRATARIA - CÓPIA NÃO AUTORIZADA
UNINOVE

Rev. B

Engenharia de Avaliações e Perícias
Manutenção Predial e Avaliação de Máquinas
e Equipamentos

16/07/2011
Folha 84/424

Observa-se que as juntas de trabalho poderão existir, também, em locais de
mudanças de tipos de revestimentos ou, até mesmo, de cores em um mesmo
plano de revestimento.
Paredes
Nos revestimentos utilizados em paredes, de uma maneira geral, podem ser
observadas as seguintes anomalias: formações de fissuras diversas,
empolamentos, destacamentos e deslocamentos, infiltrações diversas de água
e outros, falta de juntas de trabalho de revestimentos, deficiência em
rejuntamentos, má especificação de rejuntes e juntas diversas etc.
Tais anomalias podem ter suas causas relacionadas a fatores construtivos ou à
má qualidade de materiais, enquanto as falhas são derivadas de atividades de
manutenção mal empregadas.
Observa-se que em áreas molhadas, como, por exemplo, áreas de boxe de
chuveiro, a falta de procedimentos de rejuntamentos periódicos, bem como da
limpeza dos rejuntes, ocasionam proliferações de fungos, além de infiltrações
pelas frestas que aparecem na juntas.
O uso impróprio de produtos com bases ácidas para a limpeza de
determinados revestimentos poderão acarretar desgastes excessivos de
películas, manchas etc.
Importante, também, são as boas condições de alinhamento e esquadros das
alvenarias e, conseqüentemente, dos revestimentos aplicados nelas, pois em
superfícies desalinhadas, poderão resultar em espessuras exageradas de
revestimentos, ocasionando fissuras ou outras anomalias, nas mesmas.
Forros
A presença de fissuras em forros de gesso liso, do tipo forros rígidos, pode ser
causada por: deficiência ou falta de juntas de dilatação nos encontros com as
paredes ou em “meios dos panos” de grandes dimensões; falta de estruturação
ou reforço em forros com configuração de forma muito irregular; além de
aberturas nos forros para instalação de embutidos (grelhas de ar condicionado
e luminárias).
A instabilidade estrutural dos forros em geral também está relacionada com a
inobservância das normas ou das recomendações dos fabricantes quanto aos
procedimentos
de
montagem
e
execução
das
estruturas
de
fixação/sustentação.

Elaborado por:

Analisado por:

Professor :

Marcelo Gandra Falcone

Alessandra Aparecida Vieira

Marcelo Gandra Falcone

QUANDO IMPRESSO CONSIDERAR PIRATARIA - CÓPIA NÃO AUTORIZADA
UNINOVE

Rev. B

Engenharia de Avaliações e Perícias
Manutenção Predial e Avaliação de Máquinas
e Equipamentos

16/07/2011
Folha 85/424

Podem ser utilizados matérias e elementos não adequados (sujeito à corrosão)
ou ainda existir deficiência no seu dimensionamento. Podem existir, também,
instabilidade e formações de fissuras, para casos de forros rígidos, devido à
sobrecarga de elementos instalados e apoiados diretamente no forro
(luminária, varal etc.), desprovido de reforço.
São também identificadas deficiências de conforto térmico e acústico por
especificação inadequada de materiais.
Além disso, em muitos casos, há deficiências no dimensionamento ou
inexistência de alçapões de acesso para realização das manutenções das
instalações e dos elementos embutidos no forro.
Fachadas
Considerando as fachadas um dos principais sistemas construtivos da
edificação, sob o ponto de vista de valorização dos empreendimentos, é
importante observar que das inúmeras anomalias existentes em revestimentos
de fachadas destacam-se como as de maior incidência:
1. Infiltrações de água e formações de fissuras em revestimentos devido à
ausência de elementos arquitetônicos, tais como: beirais, rufos, frisos,
rodapés, soleiras, respaldos, cantoneiras e outros detalhes fundamentais
para a proteção da edificação contra a ação danosa das águas,
favorecendo o seu direcionamento nas fachadas, evitando contatos diretos
excessivos com a mesma.
2. Destacamentos de revestimentos devido à presença de fissuras, perda de
aderência, infiltrações;
3. Falta ou deficiência de juntas de trabalho, bem como falta de manutenção
dos materiais aplicados nessas juntas, proporcionando infiltrações, perdas
de aderência, formações de fissuras etc.;
4. Falta de atendimento ao Código de Obras dos Municípios. No caso de São
Paulo se determina a impermeabilização da fachada sul de uma edificação,
considerando essa a de maior incidência de chuvas;
5. Fissuras relacionadas a movimentações térmicas entre componentes de
estrutura e vedação, devido à falta de reforços em revestimentos de
argamassa;
6. Manchas de umidade e eflorescências;
7. Ainda podem ser citadas anomalias relacionadas à má qualidade de
materiais empregados, má especificação, falta de prumos e de planeza, etc.
Os trechos das fachadas junto aos pisos devem ter proteção impermeabilizante
para evitar a presença de umidade em razão da incidência de respingos de
água que resvalam no piso, contribuindo para o aparecimento das fissuras,
formação de fungos, manchamentos e presença de umidade.
Elaborado por:

Analisado por:

Professor :

Marcelo Gandra Falcone

Alessandra Aparecida Vieira

Marcelo Gandra Falcone

QUANDO IMPRESSO CONSIDERAR PIRATARIA - CÓPIA NÃO AUTORIZADA
UNINOVE

Rev. B

Engenharia de Avaliações e Perícias
Manutenção Predial e Avaliação de Máquinas
e Equipamentos

16/07/2011
Folha 86/424

9.3.3. Recomendações e orientações técnicas
A manutenção dos revestimentos deve ser executada obrigatoriamente, dentro
das condições de periodicidade e procedimentos de limpeza e conservação
recomendados pelo fabricante, observada a contratação de mão-de-obra
especializada, com a utilização de ferramentas e equipamentos adequados,
bem como a aplicação de produtos de limpeza de natureza não agressiva, para
que não danifiquem, precocemente, a superfície dos revestimentos.
Deve ser ressaltada a necessidade da revisão periódica e regular dos rejuntes,
a realização de limpeza dos ralos para evitar infiltrações, entupimentos e
transbordamentos indesejáveis.
Quanto à limpeza geral dos revestimentos, sejam eles internos e,
principalmente, externos, consiste em um procedimento de manutenção
eficiente para se garantir a durabilidade e a vida útil, sendo que, no caso de
fachadas, a limpeza remove substâncias agressivas que ficam depositadas nos
revestimentos, devido a problemas de fuligem, chuva ácida etc.
Com relação ao uso de máquinas de jato de pressão de água, deve-se ter
cuidados especiais com a regulagem das pressões utilizadas para não danificar
juntas, rejuntes e materiais do próprio revestimento. A utilização associada
dessas máquinas com produtos ácidos pode causar desgastes superficiais,
eflorescências, manchas diversas etc.
A utilização de água quente nesses procedimentos de limpeza
evitada, consoante a pequena capacidade de suporte da tubulação
(PVC branco) a altas temperaturas, o que poderá trazer danos à
hidráulica, além de perdas excessivas de pigmentos, conforme
revestimento a ser limpo.

deve ser
de esgoto
instalação
o tipo de

Com relação à proliferação de fungos e outros microrganismos, vale observar
que nesses casos há necessidade de uma limpeza específica com produtos à
base cloro (água sanitária), a fim de eliminar o microrganismo. Caso essa
limpeza não seja efetuada antes da aplicação de outro revestimento, por
exemplo, pintura, haverá novamente o manchamento da superfície, mesmo
que a eventual umidade tenha sido resolvida.
Com relação a desníveis em pisos, entre 5 e 10 cm de diferença, deverá haver
sinalizações, para se evitar quedas.
A manutenção deve atentar para a detecção de todas as irregularidades que se
apresentem nas superfícies dos revestimentos, pois elas denotam e sinalizam
problemas que podem configurar uma situação de risco que necessite de
intervenção adequada, inclusive em outros sistemas embutidos.
Elaborado por:

Analisado por:

Professor :

Marcelo Gandra Falcone

Alessandra Aparecida Vieira

Marcelo Gandra Falcone

QUANDO IMPRESSO CONSIDERAR PIRATARIA - CÓPIA NÃO AUTORIZADA
UNINOVE

Rev. B

Engenharia de Avaliações e Perícias
Manutenção Predial e Avaliação de Máquinas
e Equipamentos

16/07/2011
Folha 87/424

As intervenções devem ser implementadas no tempo correto, como forma de
prevenir prejuízos físicos e inclusive financeiros, preservando a integridade da
edificação e também dos seus ocupantes.
Na maioria das vezes a solução caseira para os problemas não é
recomendada, é contraproducente, devendo ser solicitada a presença de um
profissional competente, que analise os dados e oriente corretamente a
remoção de partes soltas, a reposição de partes danificadas, indicando
procedimentos seguros e necessários, como forma de prevenir acidentes e
assegurar a eficiência e longevidade das intervenções. Deve ser destacado
que muitas vezes o problema que se origina nas estruturas da edificação e
partes internas do revestimento mais profundo, no caso a base, se propaga e é
transmitido para a camada mais externa do revestimento. O leigo pode indicar
soluções incompatíveis e de desempenho inadequado para os problemas
analizados.

Figura 40 – IBAPE –SP, PUJADAS, F.Z.A.; GOMIDE, T.L.F.; FAGUNDES, J.C.P. e OUTROS, Inspeção Predial –Check-Up
Predial: Guia da Boa Prevenção. São Paulo: Leud, 2009.

Com relação às diversas fissuras que poderão existir nos revestimentos,
observa-se que para qualquer intervenção deverá ser investigada a sua
causalidade, além de determinar se a mesma encontra-se passiva ou ativa,
conforme já descrito anteriormente no item Alvenaria.
Observa-se, por fim, que se tratando de revestimentos de fachadas, em casos
de descolamentos e desplacamentos, há a necessidade imediata de se
Elaborado por:

Analisado por:

Professor :

Marcelo Gandra Falcone

Alessandra Aparecida Vieira

Marcelo Gandra Falcone

QUANDO IMPRESSO CONSIDERAR PIRATARIA - CÓPIA NÃO AUTORIZADA
UNINOVE

Rev. B

Engenharia de Avaliações e Perícias
Manutenção Predial e Avaliação de Máquinas
e Equipamentos

16/07/2011
Folha 88/424

proceder à remoção desses elementos, a fim de não causar danos a
transeuntes.
Recomenda-se, ainda, quanto à limpeza periódica das fachadas, a cada dois
ou três anos, principalmente aquelas em revestimentos cerâmicos, que se
proceda a inspeção visual de rejuntes e juntas de trabalho, bem como exames
de percussão em alguns trechos para se identificar eventuais descolamentos.
Observa-se que essas limpezas devem ser feitas por empresas especializadas
e, havendo quaisquer anomalias, deverá ser contratada consultoria
especializada.

Figura 41 – Revestimento Interno de Edificação Comercial em São Paulo – Foto Contru 2 - 2010

Elaborado por:

Analisado por:

Professor :

Marcelo Gandra Falcone

Alessandra Aparecida Vieira

Marcelo Gandra Falcone

QUANDO IMPRESSO CONSIDERAR PIRATARIA - CÓPIA NÃO AUTORIZADA
UNINOVE

Rev. B

Engenharia de Avaliações e Perícias
Manutenção Predial e Avaliação de Máquinas
e Equipamentos

16/07/2011
Folha 89/424

9.4. SISTEMAS DE PINTURA

9.4.1. Descrição e finalidade do sistema
A utilização do sistema de pintura como revestimento final das superfícies é
pioneira, e ainda permanece largamente empregada na construção civil, sendo
assim, foi destacado em relação aos outros tipos de revestimentos citados
neste livro.
Atua, prioritariamente, como elemento de proteção das bases ou das
superfícies pintadas com elevada performance, além de ter função relacionada
com o aspecto estético e visual, aliada à facilidade de execução e grande
versatilidade para a decoração, consoante a diversidade de texturas, variedade
de cores e apresentação de produtos com características inovadoras.
Além disso, é um sistema que propicia facilidade de manutenção e tem um
custo relativamente baixo.
O revestimento de pintura é utilizado tanto em ambientes internos como
externos, valorizando e destacando especialmente a apresentação das
fachadas.
Para cada tipo de superfície ou base de aplicação existe um tipo específico de
tinta a ser indicado, muitas vezes com mais de uma opção na utilização dos
produtos.
No caso da madeira, indica-se o verniz, mas também pode ser usado o
esmalte. Para os metais, também são indicados e muito utilizados os esmaltes.
Para as alvenarias, concretos, rebocos, minerais porosos e similares, são
indicadas e largamente aplicadas as tintas acrílicas (área externa) e PVA (área
interna).
Uma tinta, para ser considerada de boa qualidade, deve apresentar como
características principais: a facilidade de aplicação, a estabilidade de cor e
conservação da aparência, o bom rendimento e o poder de cobertura, além de
elevada capacidade de resistência às intempéries.
O resultado final do bom desempenho é alcançado desde que seja aliada a
qualidade da tinta à boa técnica de aplicação, além de boa qualidade do
substrato (base), envolvendo aspectos de:
* Limpeza;
* Inexistência de fissuras;
* Inexistência de pulverulências;
* Inexistência de microorganismos e umidade;
* Dentre outros.
Elaborado por:

Analisado por:

Professor :

Marcelo Gandra Falcone

Alessandra Aparecida Vieira

Marcelo Gandra Falcone

QUANDO IMPRESSO CONSIDERAR PIRATARIA - CÓPIA NÃO AUTORIZADA
UNINOVE

Rev. B

Engenharia de Avaliações e Perícias
Manutenção Predial e Avaliação de Máquinas
e Equipamentos

16/07/2011
Folha 90/424

9.4.2. Principais anomalias e falhas
Anomalias
Eflorescência

Causa
Acontece quando a tinta é aplicada sobre reboco úmido
ou devido à infiltração.
Saponificação
Alcalinidade natural da cal e do cimento que compõem o
reboco.
Calcinação
Alcalinidade natural da cal e do cimento que compõem o
reboco ou deterioração causada por ataques por
intemperismo.
Desagregamento Acontece quando a tinta é aplicada sobre superfície de
reboco novo, não curado ou quando há presença de
umidade.
Descascamento Ocorre quando a tinta é aplicada em superfície
pulverulenta, comprometendo a sua aderência na base. A
condição de pulverulência é uma anomalia de
revestimento de argamassa (base), conforme mencionado
no item 5.3.

Fissuras

Ocorre quando o tempo de hidratação da cal antes da
aplicação do reboco é insuficiente, ou seja, estão ligadas
às condições do substrato (base).
Em casos de vernizes, as fissuras na película poderão ser
causadas por uso indevido da tinta em relção à exposição
ambiental, como, por exemplo, uso de vernizes base
epóxi em locais externos.
Em casos de tintas base látex, as fissuras na película
podem indicar a falta de repintura e a suplantação da vida
útil do revestimento.

Manchas

Pode ocorrer, também, devido a sobreposições de trechos
da tinta, incorrendo em emendas, além de deficiências de
cobrimento da película ou poucas demãos de aplicação.
Por pingos de chuva: extração de substâncias solúveis
que afloram e mancham o filme da tinta ou ainda por ação
de infiltrações, deposição de fuligens e sujidades, além de
proliferação de fungos.
Por retardamento de secagem em madeira: presença de
resíduos de soda cáustica ou removedor utilizado na
remoção de pintura antiga.
Manchas amareladas em tetos e paredes são causadas
pela presença de gorduras, óleos, fumaça de cigarros.

Elaborado por:

Analisado por:

Professor :

Marcelo Gandra Falcone

Alessandra Aparecida Vieira

Marcelo Gandra Falcone

QUANDO IMPRESSO CONSIDERAR PIRATARIA - CÓPIA NÃO AUTORIZADA
UNINOVE

Engenharia de Avaliações e Perícias
Manutenção Predial e Avaliação de Máquinas
e Equipamentos

Bolhas

Trincas

Enrugamento

Crateras

Rev. B
16/07/2011
Folha 91/424

Ocorre quando a tinta é aplicada sobre massa corrida
PVA externamente, ou na repintura sobre tinta de má
qualidade, ou quando a poeira do lixamento da massa
não foi eliminada, ou quando a tinta não foi devidamente
diluída.
Podem ser causadas, também, devido a infiltrações de
água, principalmente em películas mais impermeáveis
como esmalte, látex acrílico etc.
São causadas por movimentos da estrutura, com reflexos
no substrato, retração da argamassa e outras, conforme
citado em itens 5.1 de estrutura e 5.2 de alvenaria.
Ocorre quando se aplicam demãos de tinta
demasiadamente espessa, ou quando a aplicação é feita
sobre superfícies ou ambientes com temperatura
excessivamente quente. Também podem ser causados
por ação de infiltrações de águas.
Ocorre quando são utilizados solventes não apropriados
na diluição da tinta.

As anomalias podem estar relacionadas com a escolha inadequada do material
a ser utilizado, bem como da situação ambiental, as condições climáticas, o
estado que se encontram as superfícies a serem pintadas e, principalmente,
quanto à execução da mesma com mão-de-obra não especializada, ou seja,
são decorrentes, na sua maioria, de deficiência no processo executivo, como
também podem se manifestar pelo desempenho dos materiais e por ataques
externos.

9.4.3. Recomendações e orientações técnicas
A manutenção do sistema de pintura deve ser realizada obedecendo às
inspeções regulares ou sempre que necessário, para identificação da
incidência de anomalias nas superfícies pintadas para que as intervenções
necessárias sejam realizadas e programadas como forma de preservar a
película da tinta e evitar prejuízos futuros.
Quando são identificadas anomalias de origem interna, tais como: a incidência
de umidade decorrente de infiltrações em lajes ou vazamentos de tubulações
hidráulicas e presença de fissuras localizadas, dentre outras, as mesmas
deverão ser previamente reparadas, segundo orientação técnica especializada,
antes que se proceda a repintura localizada. Preliminarmente à repintura,
deverão ser tomados todos os cuidados com a preparação e limpeza da
superfície (substrato), já citados anteriormente.
Todas as áreas internas como também as externas (fachada) devem ser
repintadas, caso seja verificada essa necessidade por inspeções, observandoElaborado por:

Analisado por:

Professor :

Marcelo Gandra Falcone

Alessandra Aparecida Vieira

Marcelo Gandra Falcone

QUANDO IMPRESSO CONSIDERAR PIRATARIA - CÓPIA NÃO AUTORIZADA
UNINOVE

Rev. B

Engenharia de Avaliações e Perícias
Manutenção Predial e Avaliação de Máquinas
e Equipamentos

16/07/2011
Folha 92/424

se a periodicidade recomendada pelo fornecedor ou construtor, em torno de
cinco anos, bem como a lavagem das pinturas externas (fachadas), a cada dois
anos.
Observa-se que as periodicidades são decorrentes, também, do tipo de tinta
utilizada, número de demão, consistência do material (se foi diluída ou não),
dentre outras interferências relativas à qualidade da preparação da superfície,
remoção da película antiga e mão-de-obra qualificada.
Cabe destacar que, em casos de incidências de trincas diversas,
eflorescências, destacamentos de argamassa, dentre outras anomalias já
citadas em sistemas correlacionados ao de pintura, é importante a devida
correção dos mesmos, com a investigação de suas causas, a fim de contribuir
para o sucesso do programa de manutenção implantado na pintura.
Por fim, é importante consignar que o bom desempenho de sistemas de
pinturas depende das condições gerais de suas bases (substrato).

Figura 42 – Pintura Artística em Edificação em São Paulo – Foto Contru 2 - 2008

Elaborado por:

Analisado por:

Professor :

Marcelo Gandra Falcone

Alessandra Aparecida Vieira

Marcelo Gandra Falcone

QUANDO IMPRESSO CONSIDERAR PIRATARIA - CÓPIA NÃO AUTORIZADA
UNINOVE

Rev. B

Engenharia de Avaliações e Perícias
Manutenção Predial e Avaliação de Máquinas
e Equipamentos

16/07/2011
Folha 93/424

9.5. Sistemas de Esquadrias

9.5.1. Descrição e finalidade do sistema
O sistema denominado esquadrias compreende todos os componentes
construtivos (caixilhos) empregados na execução de portas, janelas, portões,
grades, fachadas-cortina, envidraçamento etc.
São os caixilhos responsáveis por promover a estanqueidade das aberturas de
ventilação e iluminação dos edifícios, estando sujeitos a movimentações para
sua abertura e fechamento.
A função das esquadrias é proporcionar a separação entre ambientes
contíguos de forma permanente no caso das esquadrias fixas, ou de forma
variável no caso das esquadrias móveis.
Essa separação permite contato visual com o exterior, iluminação ambiental,
possibilita a ventilação natural, protege o interior das intempéries promove a
segurança, limitando o acesso ao interior dos ambientes.
As esquadrias móveis permitem a variação imediata de sua função: de
totalmente vedada a totalmente aberta, passando por todas as funções
intermediárias, individuais ou combinadas entre si, tais como iluminação,
ventilação, iluminação com ventilação, passagem obstruída etc.
O bom desempenho em uso e a durabilidade ao longo do tempo são
parâmetros básicos para o comportamento das esquadrias e devem ser
garantidos por um sistemático controle de qualidade. Esse controle de
qualidade inicia-se ainda na fase de projeto, pela escolha do tipo e do material
constituinte da esquadria em função do entorno e da utilização que ela terá.
A correta instalação e a manutenção favorecem o bom comportamento global
da caixilharia, sendo fundamentais para que atinja ou recupere o nível de
desempenho desejado.
Os acessórios de um caixilho, tais como fechos, roldanas, dobradiças, pivôs
etc., devem contribuir para o bom desempenho do conjunto, e são os maiores
responsáveis pelo bom funcionamento da esquadrias, notadamente no que se
refere à estanqueidade ar/água, isolação termoacústica, ventilação e
estabilidade estrutural. O dimensionamento dos acessórios deverá obedecer às
necessidades da esquadria.
As esquadrias possuem os mais sofisticados sistemas de juntas existentes em
uma edificação e estas são as partes mais vulneráveis das mesmas, em
especial as janelas, sob qualquer exigência de desempenho, particularmente
sob o ponto de vista da estanqueidade ao ar, à água e à isolação acústica.
Elaborado por:

Analisado por:

Professor :

Marcelo Gandra Falcone

Alessandra Aparecida Vieira

Marcelo Gandra Falcone

QUANDO IMPRESSO CONSIDERAR PIRATARIA - CÓPIA NÃO AUTORIZADA
UNINOVE

Rev. B

Engenharia de Avaliações e Perícias
Manutenção Predial e Avaliação de Máquinas
e Equipamentos

16/07/2011
Folha 94/424

Componente essencial nas esquadrias é o selante, que é uma composição
elastomérica à base de materiais próprios para vedação. Normalmente usado
na calafetação, colagem e isolação entre dois suportes quaisquer. Sua principal
característica deve ser a capacidade de absorver movimentações, trabalhando
em conjunto com os suportes, sem se soltar. Existem vários tipos de selantes,
sendo os mais conhecidos: massa de vidraceiro, selantes acrílicos, de
poliuretano ou de silicone, entre outros.

Figura 43 –Esquadrias- IBAPE –SP, PUJADAS, F.Z.A.; GOMIDE, T.L.F.; FAGUNDES, J.C.P. e OUTROS, Inspeção Predial –
Check-Up Predial: Guia da Boa Prevenção. São Paulo: Leud, 2009.

As gaxetas e escovas, também conhecidas como guarnições, são elementos
pré-moldados, utilizados nos sistemas de vedação de fachada, por encaixe,
que controlam ou impedem a passagem de ar, água ou ruídos em um
determinado ponto. As gaxetas são extrudadas e vulcanizadas, de neoprene,
PVC, EPDM (material elastômero), silicone etc., com secções diversas e em
vários materiais. Já as escovas são construídas, geralmente, de fibras de
polipropileno, que podem ser tratadas com silicones, de modo a melhorar seu
desempenho em uso na estanqueidade à água, facilitando o deslizamento das
folhas.

Elaborado por:

Analisado por:

Professor :

Marcelo Gandra Falcone

Alessandra Aparecida Vieira

Marcelo Gandra Falcone

QUANDO IMPRESSO CONSIDERAR PIRATARIA - CÓPIA NÃO AUTORIZADA
UNINOVE

Rev. B

Engenharia de Avaliações e Perícias
Manutenção Predial e Avaliação de Máquinas
e Equipamentos

16/07/2011
Folha 95/424

Normalmente as esquadrias de alumínio são as mais
estanques em função dos componentes utilizados em sua fabricação, tais
como as citadas gaxetas e escovas. Em geral, as esquadrias de ferro e as de
madeira são menos estanques que as de alumínio por não possuírem os
componentes de vedação.

Figura 44 – Esquadrias - IBAPE –SP, PUJADAS, F.Z.A.; GOMIDE, T.L.F.; FAGUNDES, J.C.P. e OUTROS, Inspeção Predial
–Check-Up Predial: Guia da Boa Prevenção. São Paulo: Leud, 2009.

Considerando-se as características climáticas do Brasil, na maioria dos casos o
problema maior é o calor excessivo no verão. Tal condição pode ser melhorada
reduzindo-se ao mínimo a entrada de energia solar pela janela; nesse caso,
são fundamentais as características do vidro (ou plástico) empregado nas
áreas transparentes e translúcidas da janela e que são dadas pela sua
transmitância (quantidade de luz que o atravessa em relação à quantidade de
luz total que o atinge), pela absorção e pela refletância à radiação solar.
As esquadrias devem atender aos seguintes requisitos de desempenho:
 Resistência a cargas de vento;
 Resistência a esforços de uso;
 Resistência à intrusão;
 Estanqueidade à água de chuva;
 Estanqueidade ao ar;
 Estanqueidade a insetos e poeiras;
 Isolação acústica;
 Iluminação;
 Ventilação;
 Facilidade de manuseio;
 Aspecto;
Elaborado por:

Analisado por:

Professor :

Marcelo Gandra Falcone

Alessandra Aparecida Vieira

Marcelo Gandra Falcone

QUANDO IMPRESSO CONSIDERAR PIRATARIA - CÓPIA NÃO AUTORIZADA
UNINOVE

Engenharia de Avaliações e Perícias
Manutenção Predial e Avaliação de Máquinas
e Equipamentos





Rev. B
16/07/2011
Folha 96/424

Durabilidade;
Facilidade de manutenção (manutenabilidade);
Economia.

As esquadrias podem ser de ferro, aço, alumínio, PVC, madeira etc. ou uma
combinação desses materiais:
b. aço: em esquadrias esse material veio substituir com vantagens os antigos
caixilhos de ferro e que, se adicionados outros elementos no processo de
fabricação, se obtêm atributos específicos, como, por exemplo, os aços
revestidos com zinco – aços galvanizados, estes últimos indicados para
aplicações onde se deseja uma maior vida útil da esquadria;
c. alumínio: a intensificação do uso do alumínio em esquadrias se deve à
facilidade de conservação do material, dispensando raspagens e pinturas
periódicas; à sua leveza aliada a uma grande resistência mecânica, que lhe
permite facilidade de transporte e colocação; à durabilidade do material,
previne a ação das intempéries ou quaisquer agentes agressivos naturais,
como a maresia ou em regiões industriais; sua estabilidade dimensional,
bem como às formas e acabamento que o alumínio permite na fabricação
das esqua

Como acabamentos superficiais do caxilho tem-se a anodização, cuja função é
a melhoria estética das peças tratadas e proteção da corrosão ou de qualquer
outro ataque exterior (ar salino, poluição atmosférica etc.), e a pintura
eletrostática, líquida ou em pó, possuindo efeito estético e de proteção do
alumínio;
d. madeira: primeira matéria-prima utilizada para a fabricação de caixilhos nas
edificações. Hoje, com a produção em escala industrial, os caixilhos de
madeira retomam seu lugar no mercado como material nobre na fabricação
de esquadrias. Em função do preço da matéria-prima, dificuldades de
extração, tratamento e sofisticação da fabricação seu consumidaor passa a
ser o público de primeiro nível e de mais alto poder aquisitivo. Deverão ser
utilizados caixilhos fabricados a partir de madeira certificada (oriunda de
reflorestamento ou originárias de florestas com manejo sustentável,
devidamente acompanhada do selo de certificação);
e. PVC: as esquadrias sistéticas, produzidas a partir do elemento químico
Policloreto de Vinila - PVC na fabricação de caixilhos, têm propiciado bons
resultados, dada a grande aplicabilidade do material. As janelas apresentam
valores de resistência mecânica compatíveis com a sua utilização e estão
adaptadas ao uso em quaisquer condições climáticas, até mesmo as
extremas. Aditivos diversos, pigmentos, acrilatos e outros produtos tornam o
PVC um material que pode ser modificado de acordo com as características
desejadas quanto a:
Elaborado por:

Analisado por:

Professor :

Marcelo Gandra Falcone

Alessandra Aparecida Vieira

Marcelo Gandra Falcone

QUANDO IMPRESSO CONSIDERAR PIRATARIA - CÓPIA NÃO AUTORIZADA
UNINOVE

Engenharia de Avaliações e Perícias
Manutenção Predial e Avaliação de Máquinas
e Equipamentos







Rev. B
16/07/2011
Folha 97/424

Resistência mecânica;
Resistência ao impacto;
Temperatura;
Estabilidade de cor;
Outros parâmetros que garantam a durabilidade dos componentes.

9.5.2. Principais anomalias e falhas
As anomalias estão associadas a problemas originários na fase construtiva da
edificação, de responsabilidade do construtor, relacionadas com deficiência de
projeto, especificação equivocada ou material empregado divergente da
indicação do projeto como também associados à utilização de mão-de-obra
desqualificada ou destreinada.
As falhas estão associadas à fase de utilização da edificação relacionadas com
deficiência de manutenção, de responsabilidade do usuário ou proprietário.
Normalmente as falhas ocorrem quando negligenciados os procedimentos de
limpeza periódica (lavagem) ou a limpeza com procedimentos e procedimentos
e produtos impróprios, ou ainda descuidos na revisão dos materiais utilizados
nas vedações, fixação dos vidros e lubrificação das partes móveis.
Dentre as anomalias mais comuns em esquadrias destacam-se:
1. Quanto ao projeto:







Projeto inadequado ou inexistência de projeto.
Atualmente o não atendimento à acessibilidade é defeito grave, uma vez
que
esse conceito está muito bem definido e é obrigatório por força
de leis e normas (Decreto Federal 5.296/04; Leis Federais 10.048/00 e
10.098/00; ABNT NBRs 9.050/04 e 15.260).
A vida útil dos caixilhos está diretamente ligada ao material constituinte, sua
adequação ao meio ambiente, a maneira como é utilizado e a manutenção
que recebe.
A má escolha dimensional da esquadra e seu posicionamento, em especial
da janela, podem ocasionar desconforto térmico, luminoso, de ventilação,
visual etc., além de dificuldades na manutenção.

2. Quanto à estanqueidade







Deficiência da estanqueidade para esquadrias de fachadas gera infiltrações
de água de chuva dentro de ambientes como: quartos, salas, escritórios etc.
As possibilidades de ocorrer infiltrações de água pelas janelas são:
Nas juntas do marco ou contramarco da janela com o vão da fachada;
Nas juntas do marco com a folha móvel da janela;
Entre o pano de vidro e as travessas e montantes da folha da janela;
Pelas frestas no encontro dos perfis do marco ou da folha;

Elaborado por:

Analisado por:

Professor :

Marcelo Gandra Falcone

Alessandra Aparecida Vieira

Marcelo Gandra Falcone

QUANDO IMPRESSO CONSIDERAR PIRATARIA - CÓPIA NÃO AUTORIZADA
UNINOVE

Engenharia de Avaliações e Perícias
Manutenção Predial e Avaliação de Máquinas
e Equipamentos








Rev. B
16/07/2011
Folha 98/424

A inexistência ou insuficiência de furação para drenagem da água
acumulada nos marcos.
Tal anomalia decorre de deficiência ou ausência de projeto, uso Inadequado
de materiais ou ainda pelos processos de montagem e instalações
defeituosos. Ressalta-se que a instalação incorreta das janelas em obra é a
origem de grande parte das patologias.
As juntas são as partes mais vulneráveis das janelas quanto estanqueidade
ao ar e a água, devendo-se tomar cuidados especiais quanto ao seu
desenho, material que a constitui e o posicionamento da janela na fachada
do edifício.
No caso de esquadrias em alumínio, a falta de estanqueidade pode se dar
pela baixa qualidade na confecção dos caixilhos, onde não existam
componentes de vedação ou estes sejam com materiais impróprios e/ ou
defeituosos.

Observa-se que em determinados tipos de caixilhos pode haver calafetações
feitas com selantes do tipo silicone, que podem gerar pontos de infiltrações de
água, já que, muitas vezes, existem imperfeições e desalinhamentos nos vãos,
além de problemas de falta de limpeza das superfícies quando da instalação
dos mesmos, originando pontos falhos que apresentarão perda de
desempenho precoce.
Essa anomalia também poderá estar relacionada ao desgaste de gaxetas e
escovas, dentre outros elementos vedantes.
Em linhas gerais, observam-se alguns parâmetros relativos à perda da
estanqueidade em caixilhos de alumínio em fachadas de edifícios do tipo
cortina. Normalmente a vedação dos sistemas de esquadrias utilizados no
Brasil está baseada no uso de guarnições e selantes de silicone (que pode ser
silicone estrutural ou de vedação). Ambos podem ser instalados entre
elementos de alumínio e vidro e são usados para controlar ou impedir a
passagem de ar ou água no sistema.


Considerações sobre silicone estrutural:

Normalmente, o uso de silicone estrutural nas fachadas-cortina se restringe à
aderência do vidro, transferindo as cargas a que a fachada está sujeita a uma
estrutura de alumínio adjacente. No entanto, falhas na aplicação do silicone
estrutural podem causar, além dos problemas estruturais, incorrendo em
deslocamentos do vidro, problemas de infiltração.
Alguns dos problemas mais freqüentes observados na aplicação do silicone
estrutural são:
 Limpeza incorreta ou deficiente da superfície de aderência prévia à
aplicação;
Elaborado por:

Analisado por:

Professor :

Marcelo Gandra Falcone

Alessandra Aparecida Vieira

Marcelo Gandra Falcone

QUANDO IMPRESSO CONSIDERAR PIRATARIA - CÓPIA NÃO AUTORIZADA
UNINOVE

Engenharia de Avaliações e Perícias
Manutenção Predial e Avaliação de Máquinas
e Equipamentos






Rev. B
16/07/2011
Folha 99/424

Aplicação do cordão de silicone em dimensões não conformes com o
projeto;
Falhas de coesão no silicone por uso de material fora do prazo de
validade.

Considerações sobre silicone de vedação:

Juntamente com as gaxetas, é o material mais usado em fachadas para
vedação. Uma vez corretamente aplicado, deverá promover total
impermeabilidade entre os setores vedados.
Os potenciais e possíveis problemas de infiltração existentes em setores
supostamente vedados com silicone de vedação são:
 Má aderência do silicone à superfície aplicada, devido à limpeza
incorreta ou qualidade insuficiente, considerando a superfície de
aderência;
 Aplicação do cordão de silicone em dimensões não conformes com o
projeto;
 Material fora do prazo de validade; e
 Deterioração do cordão ou perda parcial da coesão por ação de
agentes agressivos (mecânicos ou químicos). Cabe ressaltar o efeito
nocivo que causa no EPDM em contato com o silicone.
 Considerações sobre as gaxetas
Os problemas mais freqüentes encontrados nas gaxetas, que resultam em
infiltrações, são:
 Má instalação da gaxeta no perfil;
 Deslocamento da gaxeta durante a instalação;
 Deslocamento por movimentação estrutural ou dilatação;
 Deslocamento por pressão insuficiente na gaxeta.
 Deterioração ou ressecamento prematuro do material por ação de
agentes agressivos (mecânicos ou químicos), ou por deficiência no
material.
Considerando outros tipos de caixilhos de alumínio, que são os de cortina de
fachadas, mas sim de janelas comuns com vidros e venezianas, as posições,
dimensões e tipos de vedação de contramarcos podem contribuir para
infiltrações de água nos ambientes internos. Já nas esquadrias de ferro e nas
de madeira, a falta de estanqueidade pode ser decorrentes de falha de projeto,
em que os ressaltos existentes são muito rasos, tendo em vista que os
mesmos servem como barreiras contra a entrada de água ou vento.
Em ambas as situações acima expostas, a variação dimensional das
esquadrias é significativa, agravando mais os quadros de infiltrações.


Variações dimensionais

Elaborado por:

Analisado por:

Professor :

Marcelo Gandra Falcone

Alessandra Aparecida Vieira

Marcelo Gandra Falcone

QUANDO IMPRESSO CONSIDERAR PIRATARIA - CÓPIA NÃO AUTORIZADA
UNINOVE

Rev. B

Engenharia de Avaliações e Perícias
Manutenção Predial e Avaliação de Máquinas
e Equipamentos

16/07/2011
Folha 100/424

No processo de fabricação de esquadrias de madeira, é preciso que estas já
estejam com os níveis de umidade bem baixos, indicados como pontos de
secagem, caso contrário, as chamadas “madeiras verdes” em perfis da
esquadria, isto é, sem estar completamente seca, continuam seu processo de
secagem e podem sofrer deformações irreversíveis, mesmo depois de fixadas
nos edifícios.
A variação dimensional em esquadria de madeira também pode ser causada
pela ação das intempéries, quando dor deixada em bruto sem a proteção do
acabamento.
9.5.3. Dentre as falhas mais comuns em esquadrias destacam-se:
 Deficiências na pintura, oxidação e corrosão em esquadrias e ferro
Normalmente a corrosão é provocada pela ação da umidade e qualidade do ar,
e como essas peças não recebem qualquer tipo de tratamento, a não ser uma
camada irregular de zarcão ou primer de baixa qualidade, e são pintadas com
pincel na maioria dos casos, sem remoção de impurezas, a corrosão e o
princípio de oxidação já podem aparecer na fase de armazenamento,
colocação e período de permanência nas paredes, antes do recebimento da
pintura de acabamento.
Dessa forma, há necessidade de se proceder a um tratamento com base
anticorrosiva, anterior à aplicação da tinta. A deficiência nesse tratamento
poderá provocar a degradação do acabamento, além da oxidação e corrosão
da estrutura.
Importante observar que, para esquadrias em ferro e madeira, aspectos de
limpeza e manutenção são muito relevantes, tendo em vista que a deficiência
de sistemas de pinturas nessas esquadrias pode acarretar a sua deterioração,
incorrendo em problemas de corrosão de perfis, como exposto acima para o
caso das de ferro, e apodrecimento, para o caso das de madeira.
 Fissuras, escurecimentos, perda de cor etc. em acabamentos
Normalmente essas anomalias são causadas pela ação da poluição ou dos
raios solares. Esses acabamentos podem ser agredidos também pelo ataque
de substâncias ácidas utilizadas, inclusive, na limpeza inadequada das
esquadrias e seus acabamentos (pintado, envernizado, anodizado etc.).
Outro tipo de anomalia, relacionada à deterioração do tipo de acabamento
utilizado nas esquadrias, está relacionado à ação dos raios ultravioleta sobre
pinturas em esmalte sintético, verniz ou base epóxi, que provocam perda de
pigmentação, além de microfissuras nas películas do acabamento.
Observa-se, desde já, que o acabamento a ser empregado em uma esquadria
depende do tipo de material que a constitui, do local em que está instalada e
Elaborado por:

Analisado por:

Professor :

Marcelo Gandra Falcone

Alessandra Aparecida Vieira

Marcelo Gandra Falcone

QUANDO IMPRESSO CONSIDERAR PIRATARIA - CÓPIA NÃO AUTORIZADA
UNINOVE

Rev. B

Engenharia de Avaliações e Perícias
Manutenção Predial e Avaliação de Máquinas
e Equipamentos

16/07/2011
Folha 101/424

sua exposição ambiental, de tal forma que acabamentos com base epóxi, por
exemplo, não podem ser aplicados em locais externos, sujeitos à incidência de
raios solares, tendo em vista a má performance desse material nessas
condições, incidindo na formação de fissuras na película.
Falta de manutenção na desobstrução dos furos de drenagem na água
acumulada nos marcos.
Perda de mobilidade e/ou deficiências na abertura e fechamento das
esquadrias
As falhas mais fáceis de serem percebidas nas esquadrias ocorrem
normalmente por causa dos acessórios, havendo casos de necessidade de
remoção da própria esquadria para substituição ou reparos, como, por
exemplo, roldanas, braços e outros componentes móveis.


Os painéis basculantes ou de correr, por exemplo, podem apresentar
dificuldades de movimentação em função do desgaste das escovas, rodízios,
pivôs, gaxetas, ou mesmo após diversas camadas de pintura que diminuem as
folgas necessárias para o bom funcionamento.
Esquadrias em madeira podem apresentar empenamentos, causados pelo tipo
de madeira utilizada na fabricação ou, ainda, pela ação de infiltrações de água,
causando variações dimensionais nas peças.
Com relação às ferragens de fixação das esquadrias internas ou externas, tais
como dobradiças, pode haver problemas de mau dimensionamento na escolha
do tipo de dobradiça em relação ao peso próprio ou tamanho da esquadria
instalada.
 Folga na fixação dos vidros, vidros soltos ou quebrados
A folga na fixação de vidros, gerando situações perigosas, pode decorrer da
deterioração dos componentes em plástico, borracha sintética e da massa de
vidraceiro, ou, ainda, de problemas relacionados às dimensões das esquadrias
em relação aos vidros utilizados.
Com relação a vidros quebrados sem a ação de vandalismos, pode-se
investigar causas relacionadas a deformações excessivas dos montantes das
esquadrias, gerando tensões não suportadas pelos vidros.
Cabe destacar neste item que, para esquadrias de coberturas como Sky lights
pérgulas, clarabóias, dentre outras, ou ainda para sacadas, peitoris, guardacorpos, no caso da utilização de vidro, esse deverá ser laminado ou aramado,
devido a questões de segurança quando da quebra deles.
 Quanto aos selantes
Os selantes, quando não atendidas satisfatoriamente as solicitações de
dilatação e contração dos materiais suportes, podem se romper ou descolar.
Elaborado por:

Analisado por:

Professor :

Marcelo Gandra Falcone

Alessandra Aparecida Vieira

Marcelo Gandra Falcone

QUANDO IMPRESSO CONSIDERAR PIRATARIA - CÓPIA NÃO AUTORIZADA
UNINOVE

Rev. B

Engenharia de Avaliações e Perícias
Manutenção Predial e Avaliação de Máquinas
e Equipamentos

16/07/2011
Folha 102/424

A má limpeza e umidade dos substratos podem acarretar a falta de adesão dos
selantes ao suporte, e a conseqüente má vedação do conjunto.
Nem todos os selantes são compatíveis com todos os tipos de substratos. As
incompatibilidades devem ser conhecidas, pois provocam ausência ou perda
de adesão, contaminação irreversível dos materiais, manchas e ataques aos
suportes.
 Deterioração das esquadrias em madeira devido ao ataque de pragas
Esse tipo de anomalias acontece, principalmente, quando a madeira utilizada
em sua confecção não foi previamente imunizada. O tratamento da madeira é
feito pela imersão total das peças em tanques que contenham os produtos
químicos que irão dar a proteção. Após a imersão, as peças são armazenadas
para uma nova secagem, podendo-se fazer o tratamento em autoclave, sob
pressão, permitindo proteção com maior profundidade nos perfis.

9.5.3. Recomendações e orientações técnicas
Com relação às recomendações e orientações gerais, visando aos aspectos de
manutenção e boa conservação das esquadrias, destacam-se rotinas simples
relacionadas a:
1.Limpeza: Quando em período de obra ou reforma, em caso de
respingamento de argamassa, é aconselhável remover a massa com pano
úmido, antes que ela endureça, e se já endurecida, retirar o excesso com
“tocos” de madeira para não atingir a camada de primer, e depois da
acabamento superficial com lixa fina, tomando cuidado para não danificar a
camada de pintura. Não se deve utilizar materiais abrasivos na limpeza, como
esponja de aço ou de espuma de poliuretano, já que esses materiais causam
riscos nos acabamentos, fazendo com que os mesmo percam a finalidade
protetora sobre as esquadrias.
Para a limpeza, é recomendável o uso de apenas água e, se necessário, sabão
neutro, em intervalos de tempos compatíveis com o volume de sujeira, pois
produtos químicos com base tipo solventes e, principalmente, ácidos, danificam
os acabamentos aplicados sobre as esquadrias e, muitas vezes, os próprios
materiais componentes dessas, causando corrosão, perdas de cor,
manchamentos, dentre outras anomalias.
Observa-se que toda vez que uma esquadria de ferro ou madeira for limpa, ela
deverá se seca com pano macio, a fim de evitar empenamentos ou problemas
de corrosão, mesmo que estas estejam protegidas com acabamentos de
pintura.
Elaborado por:

Analisado por:

Professor :

Marcelo Gandra Falcone

Alessandra Aparecida Vieira

Marcelo Gandra Falcone

QUANDO IMPRESSO CONSIDERAR PIRATARIA - CÓPIA NÃO AUTORIZADA
UNINOVE

Rev. B

Engenharia de Avaliações e Perícias
Manutenção Predial e Avaliação de Máquinas
e Equipamentos

16/07/2011
Folha 103/424

Não usar produtos ácidos para lavagem de pisos, pois haverá corrosão dos
trilhos e dos batentes, e como seja necessário o uso de tais produtos, os
caixilhos devem ser forrados com papel e papelão, fechando-se toda a entrada
de ar nos caixilhos.
Caso a geometria e dimensões das janelas impeçam ou dificultem
demasiadamente o acesso às suas superfícies exteriores a partir do interior da
edificação, quando se impõe que a manutenção seja feita por fora da
edificação, deve-se levar em consideração a necessidade de equipar a
edificação com instrumental adequado ao procedimento dessa limpeza.
2. Reavivar cores e brilho: Em caixilhos anodizados ou pintados, é
recomendável, para se reavivar o brilho e as cores dos acabamentos, a título
de manutenção preventiva, usar cera automotiva.
Esse procedimento, para os caixilhos anodizados, de difícil manutenção
corretiva, pode prolongar o aspecto estético do acabamento.
3. Pintura e repintura de caixilhos de ferro, aço e madeira: O sistema de
pintura para caixilhos de ferro e aço é composto por tinta de acabamento, tinta
intermediária e tinta de fundo ou primer. As tintas de fundo são empregadas
com a finalidade de promover a aderência do sistema de pintura ao substrato
ou inibir a corrosão. No entanto, não são elaboradas para resistirem sozinhas
ao meio ambiente, necessitando de tintas de acabamento.
Acabamentos superficiais para os caixilhos de madeira são imprescindíveis
para sua proteção contra irradiação, calor, abrasão, poluição atmosférica e
umidade, tais como tintas, vernizes e outros.
Considerando a ação deletéria de agentes externos, como sol e chuva, que
favorecem a degradação dos acabamentos de pintura, e observada a vida útil
das tintas empregadas, bem como a qualidade das aplicações feitas,
recomenda-se, a cada três a cinco anos, uma nova pintura.
Observa-se que a periodicidade sugerida poderá se prolongar de acordo com o
local, devido a questões climáticas e de exposição, bem como atividades
periódicas de limpeza. Sendo assim, deve-se sempre observar questões de
desgaste na pintura original.
Para uma nova pintura há sempre a necessidade de se remover
completamente a existente, lixando-a (em caso das metálicas, principalmente
nas partes já oxidadas), além de se efetuar limpeza e verificação da
necessidade de aplicação de algum fundo nivelante ou preparador de base
para a futura aplicação da película de tinta ou acabamento escolhido.

Elaborado por:

Analisado por:

Professor :

Marcelo Gandra Falcone

Alessandra Aparecida Vieira

Marcelo Gandra Falcone

QUANDO IMPRESSO CONSIDERAR PIRATARIA - CÓPIA NÃO AUTORIZADA
UNINOVE

Rev. B

Engenharia de Avaliações e Perícias
Manutenção Predial e Avaliação de Máquinas
e Equipamentos

16/07/2011
Folha 104/424

Importante observar, também, que para esquadrias em ferro deve ser
executado um tratamento com produtos anticorrosivos e nova limpeza leve
para posterior aplicação da tinta. Em estruturas com perda de secção devido a
processos corrosivos avançados, deve-se verificar a necessidade de
substituição do perfil ou preenchimentos por meio de soldas.
Nos casos de caixilhos de chapas pré-zincadas e acabamento com pintura
eletrostática, não é necessária a repintura. Eventuais retoques, em caso de
riscos na pintura, pontos de ruptura da película ou outros problemas, devem
ser feitos conforme orientação dos fabricantes.
Observa-se que a falta de limpeza da base, conforme mencionado no item de
anomalias, provoca imperfeições, além de comprometer a aderência da tintas,
reduzindo sua vida útil.
Alerta-se que, para esquadrias em ferro com prévio tratamento galvânico, os
procedimentos para repintura devem observar a conservação da camada
protetora galvanizada, sendo que limpezas abrasivas poderão danificar a
referida proteção feita quando da fabricação da esquadria.
Recomenda-se, nessa situação, que seja aplicado um fundo do tipo Galvit para
que haja a aderência da tinta escolhida na superfície do ferro galvanizado, pois,
mesmo isenta de poeiras, a película de tinta não adere em superfícies com
esse tipo de tratamento anticorrosivo.
È bom destacar, também, que, antes de executar qualquer tipo de reforma ou
pintura em paredes, é preciso proteger as esquadrias com fitas adesivas de
PVC – não utilizar fitas tipo crepe, que podem manchar o caixilho. No caso de
contato do material utilizado com a esquadria, deve-se limpar com pano seco e,
depois, com pano umedecido em água com detergente neutro.
Por fim, neste item de repintura, é importante reforçar que a falta de remoção
das películas de tinta em procedimentos de repintura pode acarretar diversas
anomalias já citadas, destacando-se a perda de mobilidade da esquadria e a
falta de aderência da nova película de tinta.
4.Perda de mobillidade: Para que os caixilhos pivotantes e basculantes
conservem sua boa mobilidade, é importante a lubrificação moderada desses
pontos sempre que necessário, conforme orientações dos fabricantes dos
caixilhos.
Para rodízios e acessórios de aço, recomenda-se a lubrificação com óleo pelo
menos uma vez por ano. Para portas internas ou externas em madeira ou ferro,
deve-se observar a conservação das dobradiças, incluindo a sua periódica
lubrificação.
Elaborado por:

Analisado por:

Professor :

Marcelo Gandra Falcone

Alessandra Aparecida Vieira

Marcelo Gandra Falcone

QUANDO IMPRESSO CONSIDERAR PIRATARIA - CÓPIA NÃO AUTORIZADA
UNINOVE

Rev. B

Engenharia de Avaliações e Perícias
Manutenção Predial e Avaliação de Máquinas
e Equipamentos

16/07/2011
Folha 105/424

Além dos aspectos mencionados de manutenção preventiva, importante
observar que a perda de mobilidade também pode ter causa relacionada a
outros fatores descritos no item de anomalias.
5.Juntas e selantes: Recomenda-se uma inspeção periódica na juntas
vedadas para verificar o bom estado. Juntas trincadas, descoladas, fissuradas,
quebradiças ou em processo de desagregação devem ser refeitas para garantir
a estanqueidade e a proteção dos materiais contra o escorrimento interno de
água.
Os sinais visíveis de problemas de vedação podem ser observados quando há
bolhas na tintas, ferrugem, bolor, degradação da argamassa ou outros tipos de
anomalias. De uma maneira geral, as juntas têm seu tempo de vida vinculado
às características do selante utilizado, pela exposição maior ou menor ao sol e
aos agentes climáticos e pelas movimentações de compressão e extensão dos
suportes.
Para a aplicação dos selantes, as juntas devem ser limpas com solventes,
normalmente indicados pelos fabricantes, jato de areia ou ar comprimido. De
acordo com os substratos, deve-se aplicar uma camada de primer, também
recomendado pelos fabricantes, entre outros cuidados. O suporte deve estar
limpo (sem traço de óleo ou pó) e seco.
Os selantes, após a aplicação, demandam um período de cura total que
assegura suas propriedades adesivas e mecânicas, variando segundo as
condições climáticas e o tipo de junta, devendo-se procurara recomendações
dos fabricantes.
6.Perda da estanqueidade: Em esquadrias de alumínio, incluindo a do tipo
cortina, recomenda-se a verificação de gaxetas, escovas, selantes externos
etc.
Importante destacar que, quando da limpeza ou repintura de fachadas, cabe
inspecionar, remover, limpar e reaplicar os selantes externos, a fim de garantir
a impermeabilidade desses elementos.
A perda da estanqueidade é uma anomalia que pode ter suas causas ligadas a
outros problemas que não só o de manutenção, sendo recomendável que
nesses casos seja contratado um especialista para a correta apuração de
causas e recomendações de manutenção corretiva.

Elaborado por:

Analisado por:

Professor :

Marcelo Gandra Falcone

Alessandra Aparecida Vieira

Marcelo Gandra Falcone

QUANDO IMPRESSO CONSIDERAR PIRATARIA - CÓPIA NÃO AUTORIZADA
UNINOVE

Rev. B

Engenharia de Avaliações e Perícias
Manutenção Predial e Avaliação de Máquinas
e Equipamentos

16/07/2011
Folha 106/424

9.6. Sistema de instalações elétricas prediais e Sistema de Proteção
contra Descargas Atmosféricas (SPDA)

As edificações, quer sejam individuais ou coletivas, são alimentadas pela rede
pública de distribuição de energia elétrica. Essas redes poderão ainda ser
aéreas ou subterrâneas. Nas edificações de maneira geral, a tensão
secundária de distribuição é do tipo baixa tensão, diretamente ligada na própria
rede, ou transformada de alta tensão para baixa por postos primários, os quais
contemplam transformadores e demais componentes.
Quando a carga instalada ultrapassar valores estabelecidos pelas normas
pertinentes, o fornecimento será por meio de rede ou linha pública de
distribuição aérea em tensão primária de distribuição, denominada de média
tensão, que alimentará a subestação transformadora da unidade consumidora.
Basicamente, da rede de distribuição até o consumidor final, pode-se destacar
o ramal de ligação que é a interligação da rede até o poste particular, coluna
fundida no local ou fachada, denominado ponto de entrega.
O ramal de entrada é aquele correspondente à interligação entre o ponto de
entrega até a caixa ou quadro, instalado dentro da edificação, onde se
encontram a proteção geral da edificação e a medição de energia consumida.
Dessa caixa ou quadro partem os circuitos que alimentam os quadros de
distribuição localizados nas unidades de consumo, por exemplo: apartamentos,
escritórios ou o quadro de energia de uma residência.

Figura 45 – Entrada de energia - IBAPE –SP, PUJADAS, F.Z.A.; GOMIDE, T.L.F.; FAGUNDES, J.C.P. e OUTROS, Inspeção
Predial –Check-Up Predial: Guia da Boa Prevenção. São Paulo: Leud, 2009.
Elaborado por:

Analisado por:

Professor :

Marcelo Gandra Falcone

Alessandra Aparecida Vieira

Marcelo Gandra Falcone

QUANDO IMPRESSO CONSIDERAR PIRATARIA - CÓPIA NÃO AUTORIZADA
UNINOVE

Rev. B

Engenharia de Avaliações e Perícias
Manutenção Predial e Avaliação de Máquinas
e Equipamentos

16/07/2011
Folha 107/424

Basicamente, em um prédio de apartamentos, a entrada e a distribuição de
energia consistem em uma caixa de distribuição geralmente localizada no
térreo ou subsolo, instalada junto às caixa da administração, caixa da bomba
de incêndio, local este denominado de Centro de medição.
Do centro de medição partem os ramis denominados prumadas, os quais
alimentam os quadros de distribuição dos apartamentos, quadros de força das
bombas de água, quadros de força dos elevadores, quadros de força dos
portões elétricos, e quadros de iluminação e tomadas das áreas comuns.

Figura 46 – Distribuição de Energia - IBAPE –SP, PUJADAS, F.Z.A.; GOMIDE, T.L.F.; FAGUNDES, J.C.P. e OUTROS,
Inspeção Predial –Check-Up Predial: Guia da Boa Prevenção. São Paulo: Leud, 2009.

A finalidade principal das instalações elétricas é a de proporcionar, de maneira
segura e eficiente, o fornecimento de energia elétrica em diversos pontos de
consumos projetados e instalados nos imóveis. Esse fornecimento seguro
permite que os usuários consigam utilizar essa energia em seus equipamentos,
tais como: geladeiras, fornos, motores, chuveiros, aparelhos elétricos em geral,
além de iluminação.
No caso de edificações comerciais, as instalações elétricas são mais
complexas, as cargas finais a serem alimentadas, muitas delas, referem-se a
equipamentos de grande porte, por exemplo: grandes elevadores, escadas
rolantes, sistema de ar condicionado, sistema de ventilação/exaustão, quadros
diversos de força e iluminação.
Essas cargas são alimentadas por circuitos oriundos de cabinas de barramento
ou de quadros gerais de distribuição relativos às subestações de média tensão,
geralmente de grande potência.
As instalações elétricas devem ser projetadas, executadas e mantidas, de
modo a fornecer essa segurança ao usuário contra contatos acidentais,
proteções contra curtos-circuitos e sobrecargas, além de permitir a
funcionalidade adequada, de maneira que não provoque interrupções ou
desligamentos não previstos.
Elaborado por:

Analisado por:

Professor :

Marcelo Gandra Falcone

Alessandra Aparecida Vieira

Marcelo Gandra Falcone

QUANDO IMPRESSO CONSIDERAR PIRATARIA - CÓPIA NÃO AUTORIZADA
UNINOVE

Rev. B

Engenharia de Avaliações e Perícias
Manutenção Predial e Avaliação de Máquinas
e Equipamentos

16/07/2011
Folha 108/424

Observa-se que uma instalação elétrica deve ter um acompanhamento
constante da carga instalada de projeto, bem como eventuais acréscimos desta
em função de mudanças de uso ou costumes, pois caso contrário poderão
ocorrer acidentes devido à sobrecarga, gerando inclusive incêndios, como os já
ocorridos na cidade de São Paulo, os famosos Edifícios Andraus, Center 3,
Joelma e outros.

Figura 47 – Grandes Incêndios de São Paulo.

Em 1974, foi criado o GEP – Grupo Especial de Peritagem, após duas grandes
tragédias que, em meados da década de 70, abalaram nossa cidade incêndios do Edifício Andraus e Joelma Incêndios que motivaram a criação da
1ª Legislação de Segurança do Município de São Paulo: Decreto nº 10.878/
fevereiro de 1974
Voltando aos sistemas Elétricos, a manutenção periódica também é muito
importante, a fim de verificar e corrigir maus contatos, corrosões,
sobreaquecimentos, pois tais providências constituem um fator importante para
o aumento da vida útil da instalação, além de conferir aspectos de conservação
e de segurança aos usuários.




Esquema simplificado da entrada de edificação residencial
Esquema simplificado da entrada e distribuição de energia
Esquema simplificado do telefone, interfone, TV a cabo, luz de
emergência, luz escadaria, para-raios.

Dentro do sistema de instalações elétricas para efeito de inspeção predial,
podemos considerar também o sistema de telefonia, interfone, TV a cabo,
CFTV (Circuito Fechado de TV) e geradores.
O quadro de telefonia principal denominado quadro de Distribuição Geral-DG,
geralmente instalado no pavimento térreo, recebe o cabo telefônico constituído
de pares metálicos ou fibra ótica de onde, por meio de blocos terminais,
derivam-se os cabos secundários que passam em caixas de passagem e
dessas para o usuário final.
Elaborado por:

Analisado por:

Professor :

Marcelo Gandra Falcone

Alessandra Aparecida Vieira

Marcelo Gandra Falcone

QUANDO IMPRESSO CONSIDERAR PIRATARIA - CÓPIA NÃO AUTORIZADA
UNINOVE

Rev. B

Engenharia de Avaliações e Perícias
Manutenção Predial e Avaliação de Máquinas
e Equipamentos

16/07/2011
Folha 109/424

Em edificações antigas observa-se que a fiação referente ao interfone e TV a
cabo caminham junto com as fiações e caixas do sistema telefônico, e sempre
que possível esses circuitos devem ser instalados independentes em
eletrodutos rígidos próprios.
O sistema de CFTV consiste basicamente em monitores e controladores dentro
da quarita quando prédio residencial, e em sala nas edificações comerciais,
além das câmaras instaladas em pontos estratégicos.
Os geradores utilizados nos edifícios residenciais geralmente atendem um dos
elevadores, bombas, iluminação das escadarias e halls. Suas potências mais
usuais variam entre 75 kVA a 150 kVA, dependendo do fabricante e da carga.
Já nas edificações comerciais, as capacidades são maiores, ou seja, potências
na ordem de 300 kVA a 450 kVA, como também outros em torno de 2.000 kVA,
quando edificações de grande porte.
9.6.1) Entradas em média Tensão (NBR 14039 2003 Instalações Elétricas de (Alta
tensão) Média tensão)
Considerada a atividade de grandes edifícios ou atividades de uso comercial,
ou seja, com a utilização de uma potência elétrica considerável para
iluminação, aquecimento e força, é comum a entrada de energia elétrica ser
fornecida em média tensão (11,4kV a 13kV).
Da subestação principal e outras subestações unitárias instaladas na
edificação derivam- se os circuitos alimentadores dos vários quadros gerais de
distribuição e outros secundários relativos às cargas finais: iluminação,
aquecimento, força, aparelhos diversos
De acordo com essa situação típica, a lista de verificação para o sistema de
instalações elétricas considera esse tipo de entrada, bem como existência de
subestações que podem seguir o descrito abaixo:
.
1.Entrada de energia
Poste da rede da concessionária: cruzetas, chaves fusíveis, para raios,
terminais, aterramento, ferragens. Saída dos cabos, subterrâneos ou aéreos.

2.Subestação principal
Transformadores:a óleo ou a seco. Verificar vazamentos, condições das buchas de
alta e baixa tensão, conexões, radiadores, balonetes, instrumentos de medição
(temperatura), nível de óleo, relé a gás, estado da sílica gel, aterramentos.
Cubículo metálico ou construção em alvenaria: ferrugens, aterramento, acesso,
limpeza, portas, cobertura.

Elaborado por:

Analisado por:

Professor :

Marcelo Gandra Falcone

Alessandra Aparecida Vieira

Marcelo Gandra Falcone

QUANDO IMPRESSO CONSIDERAR PIRATARIA - CÓPIA NÃO AUTORIZADA
UNINOVE

Rev. B

Engenharia de Avaliações e Perícias
Manutenção Predial e Avaliação de Máquinas
e Equipamentos

16/07/2011
Folha 110/424

Disjuntores a pequeno volume de óleo, ou a gás: mecanismo, buchas, níveis
de óleo, rele de sobrecorrente, comando, equipamentos de proteção e
manobra ( bastões, luvas, estrados, alavancas, tapetes, diagramas).
Chaves seccionadoras a comando simultâneo: mecanismo, contatos.
Para raios: aterramento, buchas
Transformadores de corrente e de potencial: estado geral
Medidores de energia: ativa e reativa, lacres, outros.
3.Ramais principais ( saídas dos transformadores)
Estado geral dos circuitos, isolação, emendas, limpeza, caixas de passagem.
Banco de dutos, eletrodutos. Saídas e entradas, terminais de ligação.
4.Subestações unitárias
Transformadores: a óleo ou a seco: vazamentos, buchas de alta e baixa
tensão, conexões, radiadores, balonetes, instrumentos de medição (
temperatura, nível de óleo) , estado da sílica gel, aterramentos. Flanges entre o
transformador e painéis de alta e de baixa tensão.
Cubículo metálico ou construção em alvenaria: ferrugens, aterramento, acesso,
limpeza, portas, cobertura.
Disjuntores a pequeno volume de óleo, ou a gás: mecanismo, buchas, níveis
de óleo, rele de sobrecorrente, comando, equipamentos de proteção e
manobra (bastões, luvas, estrados, alavancas, tapetes, diagramas).
Chaves seccionadoras a comando simultâneo: mecanismo, contatos
Para raios: aterramento, buchas
Quadros de alta tensão e de baixa: estado geral, limpeza, acessibilidade,
aterramento, medidores de corrente, tensão, potência. Diagramas,
equipamentos de proteção.
Recomendação: Para edificações com grande porte nas instalações
elétricas, tais como edifícios de escritórios, shopping centers, igrejas etc.,
é importante à manutenção preditiva através de medições com aparelhos
termográficos, a fim de verificar aquecimento em cabos nos quadros
elétricos e de ajustar rotinas de manutenção preventiva.

Elaborado por:

Analisado por:

Professor :

Marcelo Gandra Falcone

Alessandra Aparecida Vieira

Marcelo Gandra Falcone

QUANDO IMPRESSO CONSIDERAR PIRATARIA - CÓPIA NÃO AUTORIZADA
UNINOVE

Rev. B

Engenharia de Avaliações e Perícias
Manutenção Predial e Avaliação de Máquinas
e Equipamentos

16/07/2011
Folha 111/424

9.6.2) Instalações Elétricas (Atendimento a NBR 5410):
Principais anomalias e falhas. Evidentemente, como em qualquer outro
sistema, existem anomalias associadas a questões construtivas, sendo que
essas podem ter sua origem ligada a deficiências nos cálculos da potência
instalada, cálculos de demanda, dimensionamentos de circuitos, condutores,
ou até em má previsão de cargas, como também problemas relacionados à
execução, além de defeitos nos materiais e equipamentos utilizados.
Em conseqüência desses problemas, poderá haver diversas anomalias
relacionadas à falta de proteção de circuitos, sobrecargas, instabilidades
elétricas, choques elétricos etc.
Com relação às falhas, elas podem ocasionar problemas devido à manutenção
não apropriada, ou mesmo à falta de manutenção, o não acompanhamento no
controle da qualidade de serviços, materiais e mesmo sem orientação e
controle na operação do sistema.

Figura 48 – “Gambiarras” – Cartilha do CONTRU em SCI

Destacando-se as anomalias e falhas que podem ter sua origem relacionada a
fatores externos, tem-se:






Surtos de tensão e corrente nas redes de distribuição de energia, podendo
provocar queima de equipamentos ou outros danos às instalações elétricas;
Interrupção de fornecimento de energia devido a fatores naturais, tais como:
chuvas, tempestades, ventos etc.;
Interrupção de fornecimento de energia devido a abalroamentos de postes,
desmoronamentos etc.;
Descargas elétricas, provocadas por raios ou falhas em sistemas de
proteção contra descargas atmosféricas etc.;
Ataque de pragas urbanas, como cupins, que se alojam e destroem os
fundos de madeira dos quadros elétricos e de telefonia.

Elaborado por:

Analisado por:

Professor :

Marcelo Gandra Falcone

Alessandra Aparecida Vieira

Marcelo Gandra Falcone

QUANDO IMPRESSO CONSIDERAR PIRATARIA - CÓPIA NÃO AUTORIZADA
UNINOVE

Rev. B

Engenharia de Avaliações e Perícias
Manutenção Predial e Avaliação de Máquinas
e Equipamentos

16/07/2011
Folha 112/424

Como falhas decorrentes de problemas relacionados à manutenção, uso e
operação inadequada do sistema, têm-se:




Modificações das instalações elétricas, mudando as características iniciais
do projeto elétrico, principalmente com acréscimo de cargas ou potências,
acarretando problemas de sobrecarga;
Uso de proteções com disjuntores ou fusíveis substituídos de forma
inadequada, não obedecendo à capacidade de corrente dos condutores, à
demanda e a outros fatores que devem ser considerados para o correto
dimensionamento.

Essa situação merece destaque, pois comumente vê-se o uso de disjuntores
com capacidades maiores que as correntes elétricas suportadas pelos cabos
ou fios que estão nele ligados e protegidos. É comum, quando um determinado
disjuntor “cai” com freqüência, o usuário trocá-lo por outro com amperagem
maior. Esse fato faz com que o disjuntor não desarme, não cortando a corrente
elétrica daquele circuito, podendo provocar o sobreaquecimento de cabos e
fios, gerando fatores de alto risco de incêndio.











Aumento de carga elétrica sem supervisão técnica com o abuso de
aparelhos eletroeletrônicos, havendo desequilíbrio de cargas entre as fases
e instabilidade elétrica na instalação;
Uso de benjamins em tomadas com diversos aparelhos elétricos ou
eletroeletrônicos ligados, causando sobrecargas e podendo, inclusive,
danificar determinados aparelhos, o que devido a isso surgem
microfaiscamentos, entre essas conexões que vão corroendo
progressivamente os metais das tomadas e plugs, chegando a um limite em
que a temperatura do condutor danifica a isolação e o curto-circuito pode
ocorrer, gerando incêndios;
Utilização de disjuntores unipolares agrupados montados lado a lado para
circuitos com mais de uma fase. Esse tipo de instalação, apesar de muito
comum, não é considerado dispositivo multipolar, significando que, no caso
de uma sobrecarga ou curto-circuito, pode haver o desarme de apenas uma
das fases, o que pode incorrer em perigo ao usuário, pois haverá ainda
alimentação elétrica no circuito;
Uso de fiações e cabos elétricos aparentes, sem proteção de eletrodutos
rígidos ou ainda sem isolação especial que permita esse tipo de exposição
direta;
Uso de cabos e fios elétricos em pequenas extensões, com muitas
emendas;
Uso de fios e cabos inadequados com isolações danificadas ou fabricados
com espessuras reduzidas em relação a valores especificados, podendo
provocar curto-circuito, mesmo que a corrente de demanda não ultrapasse
os valores limites;

Elaborado por:

Analisado por:

Professor :

Marcelo Gandra Falcone

Alessandra Aparecida Vieira

Marcelo Gandra Falcone

QUANDO IMPRESSO CONSIDERAR PIRATARIA - CÓPIA NÃO AUTORIZADA
UNINOVE

Engenharia de Avaliações e Perícias
Manutenção Predial e Avaliação de Máquinas
e Equipamentos





Rev. B
16/07/2011
Folha 113/424

Mão-de-obra sem a competência técnica necessária para a instalação de
todos os componentes, mesmo que esses estejam absolutamente
conformes aos requisitos técnicos definidos em normas;
Uso de fitas isolantes de má qualidade ou ainda de outros materiais que
não possuem as propriedades necessárias para a isolação correta nas
emendas.

Outras anomalias e falhas podem ocorrer devido a sobretensões e quedas de
tensão.




Sobretensões são fenômenos muito raros de se verificarem nas instalações
domésticas, podendo ocorrer devido à operação de chaves em circuitos de
média tensão da concessionária, ou devido a descargas atmosféricas na
rede. Existem proteções de para-raios de linha que atenuam as mesmas.
Na hipótese remota das sobretensões chegarem aos circuitos de baixa
tensão, atingirá os consumidores em maior ou menor grau, podendo
provocar queima de aparelhos e lâmpadas;
Queda de tensão da rede, de uma ou mais fases, pode acarretar a queima
de aparelhos ou motores, quando não possuem proteções contra
subtensão.

Cabe destacar que, na grande maioria dos incêndios provocados por questões
relativas à instalação elétrica, a causa mais comum reside em modificações
inadequadas nas instalações, mau estado de conservação e falta de
manutenção.

Itens de Inspeção:
 As Instalações elétricas devem estar de acordo com NBR 5410/ABNT.
 A proteção contra contatos diretos e indiretos e choques. A proteção contra
contatos diretos e indiretos deve ser providenciada com barreiras,
invólucros ou placas isolantes instaladas nos quadros elétricos, a fim de
impedir que o usuário toque em partes da instalação energizadas. Já a
proteção contra choques em geral deverá ser efetuada com dispositivos de
proteção a corrente diferencial residual (DR ou IDR), instalados nos
circuitos elétricos, além de todas as partes metálicas do quadro elétrico
estarem aterradas.
 Falta de aterramentos. Com relação a aterramentos, é necessário que
todas as instalações elétricas estejam aterradas, com destaque para as
tomadas de uso especial, como, por exemplo, para ar condicionado,
microondas, máquina de lavar roupa, chuveiro elétricos etc. Ressalta-se
que pontos de iluminação de área molhadas, como banheiro, também
devem ter suas instalações aterradas. Importante frisar que os fios verdes
existentes em diversos aparelhos elétricos devem ser ligados ao fio terra
existente nos imóveis. Reforça-se que os aparelhos, chuveiros elétricos,
Elaborado por:

Analisado por:

Professor :

Marcelo Gandra Falcone

Alessandra Aparecida Vieira

Marcelo Gandra Falcone

QUANDO IMPRESSO CONSIDERAR PIRATARIA - CÓPIA NÃO AUTORIZADA
UNINOVE

Engenharia de Avaliações e Perícias
Manutenção Predial e Avaliação de Máquinas
e Equipamentos























Rev. B
16/07/2011
Folha 114/424

torneiras elétricas e aquecedores de água devem ter resistência blindada e
sempre devem estar aterrados, evitando correntes de fuga e desarmamento
indevidos do dispositivo diferencial DR.
Falta de limpeza periódica em quadros elétricos, dentre outros. Os locais
onde se encontram os quadros elétricos, quer os internos - as unidades de
consumo, quer os localizados no centro de medição, casa de bombas, casa
de máquinas dos elevadores, devem manter-se limpos e livres de objetos
tais como: jornais, latas de tintas, papéis, solventes, móveis. As portas e
tampas dos mesmos não podem ficar obstruídas. Não permitir presença de
materiais inflamáveis, materiais explosivos, poeiras em locais onde existam
equipamentos elétricos em geral (quadros, cabos, bombas, motores).
Presença de extintor inadequado ou sinalização insuficiente. Lembrar que
na ocorrência de incêndio em equipamentos elétrico, deve utilizar extintor
(gás carbônico, pó químico) - classe C. Nunca usar água ou outro agente
que a contenha água em sua composição.
Conexões inadequadas. As conexões entre condutores e equipamentos
através de terminais devem ser compatíveis. Para se evitar efeito galvânico,
evitando-se corrosões entre os materiais, o que provoca resistência,
dificultando a passagem da corrente elétrica e conseqüentemente
aquecimento indesejado.
Uso de disjuntores de maior capacidade do que o cabo elétrico que está
ligada a este. Verificar se acontecem problemas de desarme freqüente de
disjuntores ou outros dispositivos de proteção, neste caso deve-se
investigar as causas e proceder a correta recomendação e manutenção
corretiva.
Não usar benjamins. Pois o uso simultâneo de mais de um aparelho na
tomada poderá ultrapassar a potência prevista para a instalação elétrica
daquele ponto.
Quadros não podem ter fundo de madeira.
Fios e cabos devem estar embutidos em bandejas, canaletas ou conduites
lisos resistentes ao fogo.
Cabos externos somente do tipo “PP”
Não fazer derivações em tomadas.
Não usar derivações com fio em paralelo.
Não extensões com aumento de tomadas
Partes vivas perigosas não devem ser acessíveis (caixas de passagem,
emendas, soquetes, etc).
Massas ou partes condutivas acessíveis não devem oferecer perigo, seja
em condições normais, seja em particular, em caso de alguma falha que as
tornem acidentalmente vivas.
Devem ser tomadas precauções para impedir que pessoas ou animais
toquem acidentalmente as partes vivas.
Os pontos de tomada de uso específico devem ser localizados no máximo a
1,5m do ponto previsto para a localização do equipamento a ser alimentado.

Elaborado por:

Analisado por:

Professor :

Marcelo Gandra Falcone

Alessandra Aparecida Vieira

Marcelo Gandra Falcone

QUANDO IMPRESSO CONSIDERAR PIRATARIA - CÓPIA NÃO AUTORIZADA
UNINOVE

Engenharia de Avaliações e Perícias
Manutenção Predial e Avaliação de Máquinas
e Equipamentos








Rev. B
16/07/2011
Folha 115/424

As linhas elétricas não devem ser dispostas nas proximidades de
canalizações que produzam calor, fumaça ou vapores cujos efeitos
podem ser prejudiciais à instalação. A menos que as linhas sejam
protegidas contra esses efeitos, como, por exemplo, interpondo-se um
anteparo adequado entre a linha elétrica e aquelas canalizações.
Não se admitem linhas elétricas no interior de dutos de exaustão de
fumaça ou de dutos de ventilação.
Quando uma linha elétrica atravessar elementos da construção, tais como
pisos, paredes, coberturas, tetos, etc. , as aberturas remanescentes à
passagem da linha devem ser obturadas de modo a preservar a
características de resistência ao fogo de que o elemento for dotado.
Casos em que o uso de Dispositivo Diferencial DR – Residual de alta
sensibilidade como proteção adicional é obrigatório:
a) Os circuitos que sirvam a pontos de utilização situados em locais
contendo banheira ou chuveiro;
b) Os circuitos que alimentam tomadas de corrente situadas em área
externas à edificação;
c) Os circuitos de tomadas de corrente situadas em áreas internas que
possam vir a alimentar equipamentos no exterior;
d) Os circuitos que, em locais de habitação ou não residenciais, sirvam a
pontos de utilização situados em cozinhas, copas-cozinhas, lavanderias,
áreas de serviço, garagens e demais dependências internas molhadas
em uso normal ou sujeitas a lavagens.
e) Os circuitos que, em edificações não-residenciais, sirvam a pontos de
tomada situados em cozinha, copas-cozinhas, lavanderias, áreas de
serviço, garagens e, no geral, em áreas internas molhadas em uso
normal ou sujeitas a lavagens.

Recomendação Geral: A verificação completa das condições de
preservação e de operação das instalações elétricas deve ser conforme
descrito na norma NBR 5410.
Recomendações e orientações técnicas
Considerando as anomalias e falhas relacionadas a erros d cálculos, mau
dimensionamento, defeitos nos materiais e equipamentos, falta de
manutenção, ausência de treinamento para operação e outros, podemos citar
as seguintes recomendações básicas:
1. Proteção contra contatos diretos, indiretos e choques
A proteção contra contatos diretos e indiretos deve ser providenciada com
barreiras, invólucros ou placas isolantes instaladas nos quadros elétricos, a fim
de impedir que o usuário “toque” em partes da instalação energizadas.
Elaborado por:

Analisado por:

Professor :

Marcelo Gandra Falcone

Alessandra Aparecida Vieira

Marcelo Gandra Falcone

QUANDO IMPRESSO CONSIDERAR PIRATARIA - CÓPIA NÃO AUTORIZADA
UNINOVE

Rev. B

Engenharia de Avaliações e Perícias
Manutenção Predial e Avaliação de Máquinas
e Equipamentos

16/07/2011
Folha 116/424

Já a proteção contra choques em geral deverá ser efetuada com dispositivos
de proteção à corrente diferencial residual (DR1 ou DR2), instalados nos
circuitos elétricos, além de todas as partes metálicas não condutoras de
corrente do quadro elétrico estarem aterradas. No caso de utilização de
interruptores IDR, estes devem ser utilizados nos circuitos junto com dispositivo
de sobrecorrente, ou seja, disjuntor ou fusível colocado antes do interruptor
IDR.
DR 1 – Disjunto Diferencial Residual.
DR 2 – Interruptor Diferencial Residual.
2.

Falta de aterramentos

Com relação a aterramentos, é necessário que todas as instalações elétricas
estejam aterradas, com destaque para as tomadas de uso especial, como, por
exemplo, para ar condicionado, microondas, máquina de lavar roupa, chuveiros
elétricos etc.
As tampas dos quadros elétricos devem possuir cordoalha de aterramento
entre essas tampas e o corpo do quadro.
Ressalta-se que pontos de iluminação de áreas molhadas, como banheiros,
também devem ter suas instalações aterradas.
Importante frisar que os fios verdes existentes em diversos aparelhos elétricos
devem ser ligados ao fio terra existente nos imóveis.
Reforça-se que os aparelhos, chuveiros elétricos, torneiras elétricas e
aquecedores de água devem ter resistência blindada e sempre devem estar
aterrados, evitando correntes de fuga e desarmamentos indevidos do
dispositivo diferencial DR.
3.

Limpezas periódicas em quadros elétricos, dentre outros

Os locais onde se encontram os quadros elétricos, quer os internos às
unidades de consumo, quer os localizados no centro de medição, casa de
bombas, casa de máquinas dos elevadores, devem se manter limpos e livres
de objetos tais como: jornais, latas de tintas, papéis solventes, móveis. As
portas e tampas dos mesmos não podem ficar obstruídas; esses locais também
devem possuir iluminação artificial.
Não permitir presença de materiais inflamáveis, materiais explosivos, poeiras
em locais onde existam equipamentos elétricos em geral (quadros, cabos,
bombas, motores).
4.
Lembrar que, na ocorrência de incêndio em equipamento elétrico, utilizar
extintor (gás carbônico, pó químico) – Classe C.
Nunca usar água ou outro agente que a contenha em sua composição.

Elaborado por:

Analisado por:

Professor :

Marcelo Gandra Falcone

Alessandra Aparecida Vieira

Marcelo Gandra Falcone

QUANDO IMPRESSO CONSIDERAR PIRATARIA - CÓPIA NÃO AUTORIZADA
UNINOVE

Rev. B

Engenharia de Avaliações e Perícias
Manutenção Predial e Avaliação de Máquinas
e Equipamentos

16/07/2011
Folha 117/424

5.
As conexões entre condutores e equipamentos por meio de terminais
devem ser compatíveis, para se evitar efeito galvânico, evitando-se corrosões
entre os materiais, o que provoca resistência, dificultando a passagem da
corrente elétrica e consequentemente aquecimento indesejado.
6.

Vistorias periódicas e termografia

Providenciar vistorias periódicas nas instalações elétricas, no mínimo a cada
dois anos, ou intervalos menores, por Engenheiro Eletricista habilitado e
credenciado pelo CREA. Esse profissional irá constatar as anomalias e falhas,
além de fornecer orientações observando as normas técnicas, bem como
verificar questões relacionadas ao uso de equipamentos, aumento de potências
elétricas etc. Para edificações com grande porte nas instalações elétricas,
como edifícios de escritórios, shopping centers, igrejas etc., é importante a
manutenção preditiva por meio de medições com aparelho de termografia, a
fim de verificar aquecimentos em cabos e componentes dos quadros elétricos,
por exemplo: contatores, disjuntores, fusíveis, com o intuito de ajustar rotinas
de manutenção.
7.
Não usar disjuntores de maior capacidade do que o cabo elétrico que
está ligado a este. Caso aconteçam problemas de desarme freqüente de
disjuntores ou outros dispositivos de proteção, deve-se contatar profissional
habilitado para se investigar as causas e proceder à correta recomendação e
manutenção corretiva.
8.
Não usar benjamins, pois o uso simultâneo de mais de um aparelho na
tomada poderá ultrapassar a potência prevista para a instalação elétrica
daquele ponto.
9.
Verificação completa por profissional habillitado das condições de
preservação e de operação das instalações elétricas conforme descrito na
norma ABNT NBR 5.410 – Instalações Elétricas de baixa Tensão – item
Verificação e Manutenção, onde se podem avaliar as influências da qualidade
dos componentes utilizados e da mão-de-obra que realizou a instalação,
trazendo como resultado a possível garantia da segurança dos usuários da
instalação e a eficiência energética do sistema.

Figura 48 - Benjamin - IBAPE –SP, PUJADAS, F.Z.A.; GOMIDE, T.L.F.; FAGUNDES, J.C.P. e OUTROS, Inspeção Predial –
Check-Up Predial: Guia da Boa Prevenção. São Paulo: Leud, 2009.

Elaborado por:

Analisado por:

Professor :

Marcelo Gandra Falcone

Alessandra Aparecida Vieira

Marcelo Gandra Falcone

QUANDO IMPRESSO CONSIDERAR PIRATARIA - CÓPIA NÃO AUTORIZADA
UNINOVE

Rev. B

Engenharia de Avaliações e Perícias
Manutenção Predial e Avaliação de Máquinas
e Equipamentos

16/07/2011
Folha 118/424

Curiosidades e dicas
1. Não manusear aparelhos elétricos e instalações elétricas quando houver
contato com a água; pode provocar acidentes fatais.
2. Ao lidar com eletricidade, procurar usar calçados de sola de borracha
grossa e inteiriça, evitando possíveis choques, nunca descalço.
3. Nunca segurar dois fios ao mesmo tempo. O contato simultâneo com os
dois pode ocasionar passagem de corrente elétrica e uma possível parada
cardíaca.
4. Quando tiver de lidar com as instalações elétricas, isolar sempre o fio que
acabou de mexer antes de desencapar o outro.
5. Em caso de necessidade de corte de energia, sobretudo quando houver
dúvida de qual é o disjuntor específico, desligar o disjuntor geral primeiro.
6. Parte da instalação não funciona:
 Verificar no quadro de distribuição se o disjuntor daquele circuito não está
desligado, em caso afirmativo, religá-lo;
 Se ao religá-lo ele voltar a desarmar, solicite a assistência de um técnico
habilitado, pois duas possibilidades ocorrem:
 O disjuntor está com defeito e deverá ser substituído por outro;
 Existe algum curto-circuito na instalação e será necessário reparo.

1. Disjuntor do quadro de distribuição desarmando com freqüência:
 Verificar se existe algum mau contato elétrico (conexões frouxas), que é
sempre fonte de calor, o que afeta a capacidade dos disjuntores; nesse
caso, um simples reaperto nas conexões resolverá o problema;
 Outra possibilidade é que o circuito esteja sobrecarregado com instalação
de novas cargas, cujas características de potência são superiores às
previstas no projeto. Tal fato deve ser rigorosamente evitado;
 Verificar se existe algum aparelho conectado ao circuito em questão, com
problema de isolamento ou mau contato, que possa causar fuga de
corrente.
2. Superaquecimento do quadro de distribuição:
 Verificar se existem conexões frouxas e reapertá-las.
 Verificar se existe algum disjuntor com aquecimento acima do normal; isso
pode ser provocado por mau contato interno do disjuntor, devendo o mesmo
ser imediatamente desligado e substituído.
3. Chuveiro elétrico não esquenta a água:
 Verificar se a chave de proteção no quadro de distribuição está desarmada,
caso esteja, religá-la;
 Persistindo o problema, verificar se não ocorreu a queima da resistência do
chuveiro elétrico; se for o caso, substituí-la.

Elaborado por:

Analisado por:

Professor :

Marcelo Gandra Falcone

Alessandra Aparecida Vieira

Marcelo Gandra Falcone

QUANDO IMPRESSO CONSIDERAR PIRATARIA - CÓPIA NÃO AUTORIZADA
UNINOVE

Rev. B

Engenharia de Avaliações e Perícias
Manutenção Predial e Avaliação de Máquinas
e Equipamentos

16/07/2011
Folha 119/424

Perguntas mais freqüentes
Posso
ligar
um
aparelho
de
ar
condicionado
na
minha
resistência/apartamento?
R.: Inicialmente, terá de ser verificada a potência elétrica do aparelho para
definir o dimensionamento correto do circuito que irá alimentá-lo e a respectiva
proteção. Verificar se os eletrodutos existentes comportam a enfiação. Não
comportando, providenciar eletrodutos novos (aparentes ou embutidos).
Verificar também se o ramal alimentador do quadro de proteção comporta o
aumento de carga. È importante lembrar que, no caso de edifício, a instalação
de vários aparelhos pode comprometer a entrada de energia, devendo-se
efetuar estudos específicos, pois a demanda para aparelhos de ar
condicionado é alta, citando como exemplo: entre 11 e 20 aparelhos instalados,
a demanda considerada é de 90%.


 Para que serve um DR ou IDR? Qual a diferença?
R.: É um dispositivo que protege as pessoas contra choques elétricos
provocados por contatos diretos e indiretos. DR (Disjuntor Diferencial Residual)
é um dispositivo que protege os fios do circuito contra sobrecarga e curtocircuito e as pessoas contra choques elétricos. IDR (interruptor Diferencial
Residual) é um dispositivo que liga e desliga manualmente o circuito e protege
as pessoas contra choques elétricos.
 Por que o meu ferro elétrico queimou quando o liguei em outra tomada?
R.: O ferro elétrico contém em seu interior um elemento chamado resistência
elétrica, que é expressa em ohm (Ω). Geralmente, o ferro elétrico convencional
é ligado em 110 V. A corrente que atravessa a resistência elétrica é
proporcional à tensão aplicada.
Assim, quando se dobra a tensão (caso de ligar em uma tomada de 220 V),
dobra-se a corrente, provocando a queima da resistência.
 Por que o disjuntor do quadro está sempre desligando?
R.: Provavelmente devido à sobrecarga, o mesmo se aquece e após um tempo
atua o dispositivo térmico do disjuntor, provocando o desligamento.
 Como instalar mais carga na minha residência?
R.: Inicialmente, deve-se efetuar o levantamento das cargas existentes e
acrescentar as novas cargas pretendidas, verificando pela corrente de
demanda calculada se os condutores existentes do ramal alimentador
suportam, como também os dispositivos de proteção (disjuntores ou fusíveis).

Elaborado por:

Analisado por:

Professor :

Marcelo Gandra Falcone

Alessandra Aparecida Vieira

Marcelo Gandra Falcone

QUANDO IMPRESSO CONSIDERAR PIRATARIA - CÓPIA NÃO AUTORIZADA
UNINOVE

Rev. B

Engenharia de Avaliações e Perícias
Manutenção Predial e Avaliação de Máquinas
e Equipamentos

16/07/2011
Folha 120/424

9.6.3 Sistema de Proteção Contra Descargas Atmosféricas:
O raio é responsável pelos grandes prejuízos que provoca quando atinge
edifícios, residências, animais, pessoas, redes elétricas, podendo causar
mortes, incêndios, destruição de materiais, como também falhas e danos em
sistemas de eletricidade e de telecomunicações.
No caso de edificações, sua proteção deve ser atendida obedecendo a critérios
em função do tipo de prédio, tipo de ocupação, tipo do material de construção
utilizado e localização, permitindo, assim, orientar como deve ser instalado o
para-raios.
Geralmente, o sistema é constituído por cabos e anéis de cobre, que correm
fixados junto ao perímetro da edificação, em seus pontos mais altos, junto às
muretas das lajes de coberturas e telhados. Esses cabos estão interligados
com as armações dos pilares de concreto da estrutura da edificação ou em
descidas externas junto às fachadas.
Esses anéis também estão interligados com hastes tipo Franklin, além das
estruturas metálicas das antenas, escadas metálicas, telhas metálicas, rufos,
dentre outros elementos metálicos que existirem nas coberturas das
edificações.
É importante que o sistema possua terminais aéreos nos cantos das bordas
dos perímetros das lajes de cobertura ou telhados.
O pára-raios deve estar no ponto mais alto do edifício. Massas metálicas como
torres, antenas, guarda-corpos e painéis de propaganda e sinalização devem
ser ligadas aos cabos de descida do pára-raios, integrando o sistema de
proteção contra descargas elétricas atmosféricas. O pára-raios deve estar
funcionando adequadamente. Caso contrário, há inversão da descarga para as
massas metálicas que estiverem em contato com seu cabo.
Os pára-raios podem ser do tipo FRANKLIN ou GAIOLA DE FARADAY. O tipo
radioativo/iônico tem sua instalação condenada devido à sua carga radioativa e
por não ter eficiência adequada. A manutenção dos pára-raios deve ser feita
anualmente, por empresas especializadas, conforme instrução do fabricante. É
preciso observar a resistência ôhmica do aterramento entre eletrodos e a terra
(máximo de 10 ohm) ou logo após a queda do raio.

Elaborado por:

Analisado por:

Professor :

Marcelo Gandra Falcone

Alessandra Aparecida Vieira

Marcelo Gandra Falcone

QUANDO IMPRESSO CONSIDERAR PIRATARIA - CÓPIA NÃO AUTORIZADA
UNINOVE

Rev. B

Engenharia de Avaliações e Perícias
Manutenção Predial e Avaliação de Máquinas
e Equipamentos

16/07/2011
Folha 121/424

Figura 49 – Tipo de para raios – Cartilha do CONTRU em SCI

As descidas dos sistemas de para-raios nos edifícios mais novos são feitas por
meio de ferro específico, existente junto às armaduras dos pilares da estrutura,
os quais são interligados com as ferragens das fundações. Nos mais antigos,
as descidas são externas, correndo por suportes ou fixadas nas fachadas.
As caixas de inspeção onde se localizam hastes de aterramento, utilizadas
para inspeções e para a medição da resistência de aterramento, estão
localizadas nos subsolos dos edifícios ou no pavimento térreo, para aqueles
que não possuem subsolos.
O sistema de aterramento das instalações elétricas gerais da edificação está
ligado ao sistema de descargas atmosféricas (SPDA) por meio de uma barra
de cobre, próxima à caixa de distribuição de entrada de energia
A inspeção deverá ser restrita às verificações visuais de proteções, cabos,
dentre outros componentes: entrada de energia; subestação principal; ramais
principais (saídas dos transformadores); subestações unitárias; quadros gerais
de distribuição em baixa tensão e quadros terminais; circuitos em geral;
aparelhos em geral, motores; iluminação do estádio; iluminação de
emergência; SPDA – Sistema de Proteção contra Descargas Atmosféricas
Deve ser considerada a tipologia de construção, os sistemas de proteção
atmosférica e aterramento, bem como as características das instalações,
levando-se em consideração os seguintes aspectos: confiabilidade do sistema
instalado; segurança do sistema instalado e periculosidade.
Cabe informar que o sistema de proteção dos edifícios contra a incidência de
raios não impede a ocorrência das descargas atmosféricas, entretanto, reduz
de modo bastante significativo os riscos decorrentes das descargas.
Elaborado por:

Analisado por:

Professor :

Marcelo Gandra Falcone

Alessandra Aparecida Vieira

Marcelo Gandra Falcone

QUANDO IMPRESSO CONSIDERAR PIRATARIA - CÓPIA NÃO AUTORIZADA
UNINOVE

Rev. B

Engenharia de Avaliações e Perícias
Manutenção Predial e Avaliação de Máquinas
e Equipamentos

16/07/2011
Folha 122/424

Os raios são responsáveis por danos físicos e incêndios, de tal forma que os
edifícios devem estar protegidos contra essas descargas diretas, tanto na
cobertura como nas laterais.
O sistema de proteção contra descargas atmosféricas (SPDA) tem por
finalidade proteger a edificação e seus usuários contra a descarga de raios,
que causam: sobretensões quando atingem redes de energia elétrica e de
telefonia; sobretensões quando atingem antenas coletivas e outras nas
coberturas; choques quando atingem as partes metálicas diversas, como
telhas, rufos etc.; além de evitar o encaminhamento dos raios por outras partes
das instalações elétricas que possam causar danos físicos e materiais aos
usuários da edificação.
Sendo assim, o principal objetivo da proteção contra as descargas atmosféricas
é estabelecer meios para que as descargas se dirijam para a terra pelo menor
percurso possível, por intermédio das descidas constituídas por materiais
condutores.

Figura 50 – SPDA - IBAPE –SP, PUJADAS, F.Z.A.; GOMIDE, T.L.F.; FAGUNDES, J.C.P. e OUTROS, Inspeção Predial –
Check-Up Predial: Guia da Boa Prevenção. São Paulo: Leud, 2009.

Principais anomalias e falhas
Além das anomalias relacionadas a problemas de projeto,
como deficiências do dimensionamento do sistema, equívocos de instalação e
execução, bem como uso de materiais com defeitos, existem falhas que podem
ter sua origem relacionada a questões de uso operação e manutenção,
Elaborado por:

Analisado por:

Professor :

Marcelo Gandra Falcone

Alessandra Aparecida Vieira

Marcelo Gandra Falcone

QUANDO IMPRESSO CONSIDERAR PIRATARIA - CÓPIA NÃO AUTORIZADA
UNINOVE

Rev. B

Engenharia de Avaliações e Perícias
Manutenção Predial e Avaliação de Máquinas
e Equipamentos

16/07/2011
Folha 123/424

devendo ser observadas dentro das rotinas e vistorias periódicas. Dentre
essas, pode-se citar:
1.
Deficiências de equipotencialidade com a falta do terminal de
aterramento principal, constituído por uma barra de cobre que reúne, por meio
de conexões, condutores de proteção do sistema elétrico principal, condutores
principais ligados a canalizações metálicas, estruturas metálicas, sistema
SPDA.
A falta de interligação das estruturas metálicas, em geral instaladas nas
coberturas e telhados das edificações, tais como: escadas, antenas, rufos,
telhas metálicas, dentre outras, provoca descontinuidades elétricas no sistema
quando da descarga de raios nesses locais não interligados.
Observa-se que é comum se constatar antenas diversas, instaladas durante a
vida útil da edificação, de tal forma que essas não estão ligadas aos cabos e
anéis do SPDA, não garantindo a equipotencialidade do sistema.
Nessa situação, em caso de descarga nessas antenas, haverá danos nos
aparelhos televisores ligados a essa instalação.
Além das questões de falta de interligação de partes metálicas ao sistema
SPDA, existem outros fatores, tais como: condutores com suas fixações soltas
e corrosões galvânicas em seus componentes.
As corrosões galvânicas podem ocorrer entre condutores e conexões, bem
como entre condutores e descidas, ou ainda em outros trechos na ligação de
partes metálicas com o sistema, quando não são observadas as condições de
eletronegatividade de metais, por exemplo: devem-se utilizar conexões
especiais quando se liga um elemento de alumínio ao cabo de cobre ou um
elemento de ferro ao cabo de cobre.
Portanto, observar os tipos de metais envolvidos e ligados junto ao SPDA para
garantir o seu bom desempenho e conservação.
A continuidade elétrica também pode ser comprometida em função de
rompimentos nas descidas entre as conexões e o anel captor.
Esse rompimento de cabos pode se dar devido à execução de outros serviços,
como, por exemplo: limpeza de caixa d’água, manutenção em antenas, apoio
para balancins etc., interferindo nos cabos e conexões do SPDA.
A corrosão junto às conexões do cabo de descida na malha terra, dentro das
caixas de inspeção, é outra anomalia que põe em risco a continuidade elétrica.

Elaborado por:

Analisado por:

Professor :

Marcelo Gandra Falcone

Alessandra Aparecida Vieira

Marcelo Gandra Falcone

QUANDO IMPRESSO CONSIDERAR PIRATARIA - CÓPIA NÃO AUTORIZADA
UNINOVE

Rev. B

Engenharia de Avaliações e Perícias
Manutenção Predial e Avaliação de Máquinas
e Equipamentos

16/07/2011
Folha 124/424

2. Instalação de descidas agrupadas, geralmente em edifícios mais antigos,
lembrando que as descidas devem ser executadas a cada 20 m (vinte
metros) de perímetro.
Para não ferir a estética do prédio, podem-se usar barras chatas fixadas na
superfície no lugar dos cabos do cobre que passa pelos suportes com
roldanas, tanto na cobertura quanto nas descidas. Observa-se, por fim, que a
ABNT NBR 5.419 – Sistemas de proteção contra Descargas Atmosféricas,
prevê teste de continuidade elétrica, dentre outros, a fim de verificar
constantemente esses problemas mencionados.
3. Falta de proteção das descidas externas junto às fachadas
As descidas externas junto ao piso a certa altura devem ser protegidas por
meio de alvenarias ou eletrodutos, a fim de impossibilitar impactos indesejáveis
e conseqüentes problemas de ruptura dos cabos e anéis, além de
arrancamentos de hastes de fixação.
4. Fixação de hastes nas coberturas
Toda e qualquer fixação nas lajes de cobertura, incluindo as hastes de pararaios Franklin, devem ser feitas sobre bases e nunca diretamente apoiadas
sobre as mesmas, podendo comprometer ou danificar outros sistemas, tais
como: sistema de impermeabilização.
5. Disparidades na medição da resistência ôhmica junto às hastes nas caixas
de inspeção
Quando há discrepâncias nos valores das medições ôhmicas, realizadas por
empresas terceirizadas, deve-se investigar as causas, podendo existir
problemas relacionados à continuidade elétrica do sistema, soltura de
conexões entre cabos e hastes, ruptura de soldas exotérmicas, abertura de
malha terra, dentre outros.
Observa-se que esse teste de continuidade citado, bem como a medição
ôhmica, deve ser realizado por empresa especializada, com engenheiro elétrico
responsável, e a cada cinco anos.
Na cidade de São Paulo, anualmente, é exigido pela municipalidade um
relatório de inspeção do sistema, acompanhado de recolhimento de ART
(anotação de Responsabilidade Técnica, emitida pelo CREA) pelo profissional
responsável.
6. Outras anomalias envolvendo questões de origem externa:



Queda da haste Franklin e de antenas devido a ventanias.
Comprometimento do sistema com corrosões e rompimentos do condutor
ou cantos da cobertura devido à incidência de raio.

Elaborado por:

Analisado por:

Professor :

Marcelo Gandra Falcone

Alessandra Aparecida Vieira

Marcelo Gandra Falcone

QUANDO IMPRESSO CONSIDERAR PIRATARIA - CÓPIA NÃO AUTORIZADA
UNINOVE

Engenharia de Avaliações e Perícias
Manutenção Predial e Avaliação de Máquinas
e Equipamentos




Rev. B
16/07/2011
Folha 125/424

Outros tipos de corrosões em cabos, conexões, hastes etc. devido a chuvas
ou ar externo agressivo.
Modificações ou alterações executadas em telhados ou coberturas com
comprometimento do sistema ou falta de adequações, ocorrendo
rompimentos de cabos, desvios inadequados, hastes malfixadas etc.,
comprometendo a continuidade elétrica e a equipotencialidade do SPDA

Itens de Inspeção:









De acordo com o Item 9.C.4 do Decreto 32.329/92 , as edificações com
altura superior a 12,00m (doze metros) deverão dispor de sistema de
proteção contra descargas atmosféricas, executado de acordo com a NTO
NBR 5419/2001, não podendo ser utilizado captor iônico-radioativo nas
instalações.
Os condutores de descida não naturais devem ser instalados a uma
distância mínima de 0,50 m de portas, janelas e outras aberturas e fixados a
cada metro de percurso.
Os cabos de descida devem ser protegidos contra danos mecânicos até, no
mínimo 2,5 m acima do nível do solo. A proteção deve ser por eletroduto
rígido PVC ou metálico sendo que, neste último caso, o cabo de descida
deve ser conectado às extremidades superior e inferior do eletroduto.
Tubulações de gás deverão distar em no mínimo 2 m (dois metros) das
descidas dos condutores de aterramento dos para-raios.
Uma inspeção visual do SPDA deve ser efetuada anualmente. Inspeções
completas devem ser efetuadas periodicamente, em intervalos de:
a) 5 anos para estruturas destinadas a fins residenciais, comerciais,
administrativos, agrícolas ou industriais, excetuando-se áreas classificadas
com risco de incêndio ou explosão;
b) 3 anos para estruturas destinadas a grandes concentrações públicas (
por exemplo: hospitais, escolas, teatros, cinemas, estádios de esporte,
centros comerciais e pavilhões), indústrias contendo áreas com risco de
explosão, conforme a NBR 9518, e depósitos de material inflamável;
c) 1 ano, para estruturas contendo munição ou explosivos, ou em locais
expostos à corrosão atmosférica severa (regiões litorâneas, ambientes
industriais com atmosfera agressiva, etc.)

Recomendações e orientações técnicas
De acordo com as anomalias e falhas já mencionadas, recomenda-se que
quaisquer sejam as manutenções ou adequações a serem feitas no sistema de
para-raios, essas deverão ser executadas por empresa especializada, tendo
em vista as questões técnicas envolvidas.
De qualquer forma, seguem tópicos orientativos:
Elaborado por:

Analisado por:

Professor :

Marcelo Gandra Falcone

Alessandra Aparecida Vieira

Marcelo Gandra Falcone

QUANDO IMPRESSO CONSIDERAR PIRATARIA - CÓPIA NÃO AUTORIZADA
UNINOVE

Rev. B

Engenharia de Avaliações e Perícias
Manutenção Predial e Avaliação de Máquinas
e Equipamentos

16/07/2011
Folha 126/424

1. Manter cabos, anéis, hastes e roldanas sempre bem fixados, a fim de
não comprometer a continuidade elétrica.
2. Sempre ligar ao sistema as estruturas metálicas existentes nas
coberturas e telhados, respeitando os tipo de metais, utilizando as devidas
conexões, a fim de não provocar danos à equipotencialidade do sistema e
sua continuidade elétrica.
3. Fazer as inspeções periódicas a cada ano e as completas, envolvendo
teste de continuidade e medições ôhmicas, a cada cinco anos
Curiosidades e dicas
1.

O que é raio ou descarga elétrica?

R.: O raio pode ser considerado um fenômeno elétrico, resultante do acúmulo
de cargas elétricas em uma nuvem e a conseqüente descarga elétrica sobre a
terra ou sobre qualquer estrutura que ofereça condições favoráveis à descarga.
2.

Os raios caem nos pontos mais altos?

R.: Em pontos mais elevados a probabilidade de um raio cair é maior do que
nos locais mais baixos.
3.

Existe alvo preferido pelos raios? Como se comporta a corrente?

R.: Em edificações, os raios preferem os cantos. Quando o raio cai em um
canto, aproximadamente 50% da corrente vai para a terra por meio do condutor
de descida do canto.
4.

Qual é a área que os para-raios protegem?

R.: O tipo Franklin dá uma proteção em um cone cuja base é um círculo, sendo
o raio do círculo função da altura em que está instalado o para-raio. O tipo
gaiola de Faraday consiste na teoria de que o campo no interior da gaiola é
nulo. Entretanto, para o campo ser nulo é necessário que a corrente se
distribua uniformemente por toda a superfície. Lembrando que a malha mais
importante é a que percorre toda a periferia da cobertura e a periferia da casa
de máquinas e caixa d’água. Sempre que possível, instalar descidas em cada
canto do edifício, e outras quando houver, espaçadas regularmente.
5.

Durante uma tempestade o que devemos fazer?

R.: Na cidade, evitar contato com objetos metálicos de grande porte, canos,
torneiras, não ficar descalço, evitar tocar aparelhos eletrodomésticos. No
campo, não ficar embaixo de árvores, não tocar em cercas.
Elaborado por:

Analisado por:

Professor :

Marcelo Gandra Falcone

Alessandra Aparecida Vieira

Marcelo Gandra Falcone

QUANDO IMPRESSO CONSIDERAR PIRATARIA - CÓPIA NÃO AUTORIZADA
UNINOVE

Rev. B

Engenharia de Avaliações e Perícias
Manutenção Predial e Avaliação de Máquinas
e Equipamentos

16/07/2011
Folha 127/424

9.7 Sistema Hidráulico

9.7.1 Descrição e finalidade do sistema
As edificações são guarnecidas de instalações hidráulicas que têm a finalidade
de garantir a habitabilidade do usuário, no que tange a higiene, asseio, limpeza
e conforto.
As instalações hidráulicas são compostas por um conjunto de tubulações e
equipamentos, aparentes ou embutidos, destinado ao transporte e controle de
fluxo de água, esgoto e demais fluídos em uma edificação, conforme projeto
elaborado de acordo com as normas técnicas da ABNT vigentes. Este capitulo
foi escrito baseado na Norma NBR 5626/98 NBR 05626 - 1998 - Instalação
predial de água fria.
Os sistemas que compõem as instalações hidráulicas são:







Água fria;
Água quente;
Esgoto;
Águas pluviais;
Sistema de combate a incêndio;
Gás.

Abaixo seguem as descrições resumidas e básicas dos sistemas citados.
1 Sistema de instalações hidráulicas prediais de água fria
Tem sua origem, normalmente, no abastecimento de água por uma empresa
concessionária de serviços públicos. Em alguns casos específicos, poderá
haver abastecimento total ou parcial de água por meio de captação de águas
profundas pela instalação e licença de operação de poços artesianos.
Os componentes usuais do sistema de água fria são: hidrômetro, bombas de
recalque, tubulações, registros, válvulas e reservatórios.
A água entra para a edificação passando por um hidrômetro, o qual registra a
quantidade ou volume de água consumida, dirigindo-se pelas tubulações para
os reservatórios inferiores, que podem ser do tipo cisternas (enterrados) ou
não.
Em edificações térreas ou de poucos pavimentos, podem não existir
reservatórios inferiores, sendo que a pressão de água fornecida pela
concessionária é suficiente para que a água chegue a reservatórios elevados
ou superiores.
Nas edificações com vários pavimentos, a água é armazenada em um
reservatório inferior, portanto, é bombeada por meio de bombas de recalque
para o reservatório superior.
Elaborado por:

Analisado por:

Professor :

Marcelo Gandra Falcone

Alessandra Aparecida Vieira

Marcelo Gandra Falcone

QUANDO IMPRESSO CONSIDERAR PIRATARIA - CÓPIA NÃO AUTORIZADA
UNINOVE

Rev. B

Engenharia de Avaliações e Perícias
Manutenção Predial e Avaliação de Máquinas
e Equipamentos

16/07/2011
Folha 128/424

A água que sai do reservatório superior, antes de se dirigir às tubulações
específicas de cada prumada da edificação, passa por um ambiente técnico de
manobras e direcionamentos, que é chamado de barrilete.
No barrilete existem vários registros de água fria que comandam o
fornecimento de água para as diversas prumadas da edificação, sendo que, em
casos de manutenções específicas, fecha-se o registro da respectiva prumada.
Desse modo, a água desce pelas prumadas de água fria para cada andar,
onde são distribuídas pelos ramais de água fria, chegando nos pontos de
consumo, tais como: torneiras (pia, lavatórios e tanque), válvulas ou caixas de
descarga, chuveiros etc.
As tubulações de água fria, quando aparentes, são identificadas pela cor verde
emblema.
Salienta-se que, para edificações cuja pressão estática ultrapassar 40 m de
coluna d’água (40 mca), ou seja, quando a distância entre o reservatório e o
ponto de consumo for maior do que 40 m de altura, é recomendada a
instalação de válvula redutora de pressão nas respectivas tubulações.
Nas edificações mais antigas, costumava-se construir reservatórios
intermediários, diminuindo as pressões estáticas nas tubulações.
Outro fator importante nas instalações hidráulicas de água fria é que o
fechamento de qualquer peça de utilização (torneiras, válvulas de descarga
etc.) não poderá causar sobrepressões, em qualquer ponto da instalação,
maiores que 20 mca acima da pressão estática nesse mesmo ponto.
Isso quer dizer que a pressão de serviço não pode ultrapassar 60 mca em
qualquer ponto da instalação quando do fechamento de qualquer dispositivo.
Em casos contrários, ocorre o fenômeno hidrálico conhecido como Golpe de
Aríete, causando rompimentos, vazamentos e ruídos indesejáveis às
instalações, além de haver desgastes excessivos nos materiais utilizados.
Evidentemente, esse é um fator a ser previsto em projeto.
Observa-se, no entanto, que, em edifícios comerciais ou não, quando se
trocam as torneiras de acionamento manual por aquelas de acionamento
automático, dependendo do número de pontos de consumo, poderá causar o
fenômeno citado, devendo sempre ser consultado um especialista para a
mudança de usos ou substituições de peças.

2. Sistema de instalações hidráulicas prediais de água quente
O sistema de água quente se origina em equipamentos de aquecimento de
água, que podem ser do tipo: caldeiras, aquecedores de passagem e
aquecedores de acumulação. Esses equipamentos poderão, ainda, ser
elétricos, solares ou a gás.
Essa central de produção de água quente ainda poderá ser central ou
individual, dependendo do tipo de edificação, de suas características e partidos
de projeto.

Elaborado por:

Analisado por:

Professor :

Marcelo Gandra Falcone

Alessandra Aparecida Vieira

Marcelo Gandra Falcone

QUANDO IMPRESSO CONSIDERAR PIRATARIA - CÓPIA NÃO AUTORIZADA
UNINOVE

Rev. B

Engenharia de Avaliações e Perícias
Manutenção Predial e Avaliação de Máquinas
e Equipamentos

16/07/2011
Folha 129/424

Após o aquecimento da água fria nesses equipamentos, esta segue por
tubulações, registros e válvulas, geralmente em cobre, isoladas termicamente
dos demais sistemas da construção, até os pontos de consumo.
Quando o aquecimento é central, também existe local específico para o
comando geral de prumadas de água quente, podendo ou estar junto dos de
água fria já citados.
Quando o aquecimento é individual, ou seja, por meio de equipamentos
instalados dentro de cada unidade privativa da edificação, a alimentação de
água fria desses aquecedores se dá por meio de prumada específica,
independente das outras prumadas de abastecimento de água fria da unidade.
As tubulações de água quente, quando aparentes, são identificadas na cor
branca.
3. Sistema de proteção de incêndio
Esse sistema é abastecido pela reserva de água situada na parte inferior do
reservatório superior, destinada para essa finalidade consoante aspectos de
projeto e atendimento legais.
A distribuição é feita pela prumada de incêndio, identificada na cor vermelha.
Tais prumadas alimentam os hidrantes e sprinklers, onde nos andares
superiores pode haver a necessidade de instalação de uma bomba de incêndio
que garanta uma pressão de saída no bocal do hidrante, sendo esta de 15 m
coluna d’água (15 mca).
As bombas são acionadas comumente por botoeiras, podendo também ser
acionadas automaticamente. O sistema segue até um registro situado dentro
de uma caixa embutida na calçada defronte à edificação para uso exclusivo do
Corpo de Bombeiros em caso de incêndio.
4. Sistema de águas pluviais e esgoto sanitário doméstico
No sistema de águas pluviais, as águas de chuva coletadas das jardineiras,
telhados, lajes de cobertura, captadas por meio de calhas, ralos ou grelhas,
seguem pelos condutores verticais e horizontais (tubulações) até serem
despejadas em caixas de coleta e passagem para posterior ligação junto à rede
pública.
Conforme a cota topográfica onde está localizado o imóvel, pode haver sistema
de bombeamento das águas pluviais coletadas para a rede pública.
Em casos de nível de lençol freático alto, com drenagens profundas instaladas
para a captação dessas águas provenientes do solo, essa rede de drenagem
deve-se interligar ao sistema de águas pluviais da edificação, caso não haja
seu reaproveitamento.
Para o reaproveitamento de águas pluviais e/ou de drenagem de lençol
freático, é importante destacar que haverá instalações específicas para o
Elaborado por:

Analisado por:

Professor :

Marcelo Gandra Falcone

Alessandra Aparecida Vieira

Marcelo Gandra Falcone

QUANDO IMPRESSO CONSIDERAR PIRATARIA - CÓPIA NÃO AUTORIZADA
UNINOVE

Rev. B

Engenharia de Avaliações e Perícias
Manutenção Predial e Avaliação de Máquinas
e Equipamentos

16/07/2011
Folha 130/424

armazenamento dessa água, além de tratamento químicos próprios a fim de
conferir padrões de potabilidade.

Figura 51 – Principiuos de Drenagem - IBAPE –SP, PUJADAS, F.Z.A.; GOMIDE, T.L.F.; FAGUNDES, J.C.P. e OUTROS,
Inspeção Predial –Check-Up Predial: Guia da Boa Prevenção. São Paulo: Leud, 2009.

Para outros usos, não-relacionados ao consumo humano, deve-se elaborar
estudos específicos a fim de verificar viabilidades.
Por fim, cabe ressaltar que o sistema de águas pluviais da edificação se
destina unicamente à captação e condução das águas originárias de chuvas.
Portanto, cabe consignar aqui a definição de esgoto sanitário da ABNT NBR
8.160 – Instalação Predial de esgoto sanitário: “Esgoto sanitário: são os
despejos provenientes do uso da água para fins higiênicos.”
Logo, águas provenientes da lavagem de pisos externos ou internos são
consideradas como esgoto, e suas tubulações não devem estar ligadas às de
coleta ou condução de águas pluviais.
O sistema de esgotos sanitários é aquele que coleta e conduz toda a água
utilizada para fins higiênicos de uma edificação. Esse esgoto é captado por
meio de vasos sanitários, bidês, ralos de chuveiros, ralos diversos, lavatórios
etc. Essas tubulações são denominadas ramais de descarga e ramais de
esgoto.
Os ramais de descarga são aqueles que captam o esgoto nos aparelhos e
ligam-se ao ralo sifonado, com exceção dos ramais de descarga dos vasos
sanitários, que se ligam diretamente às prumadas de esgoto, chamadas tubos
de queda.
Importante observar que há necessidade de ventilação, ou seja, a instalação de
tubulação de ventilação nos ramais de esgoto que saem dos ralos sifonados
para se unirem aos outros ramais de esgoto originários das bacias sanitárias,
antes das ligações junto às prumadas ou tubos de queda. Essa ventilação faz
com que não haja retorno de odores para o ralo e demais aparelhos sanitários,
Elaborado por:

Analisado por:

Professor :

Marcelo Gandra Falcone

Alessandra Aparecida Vieira

Marcelo Gandra Falcone

QUANDO IMPRESSO CONSIDERAR PIRATARIA - CÓPIA NÃO AUTORIZADA
UNINOVE

Rev. B

Engenharia de Avaliações e Perícias
Manutenção Predial e Avaliação de Máquinas
e Equipamentos

16/07/2011
Folha 131/424

além de promover a estabilidade hídrica do ralo, quando as descargas das
bacias são acionadas. Segue ilustração básica da instalação hidráulica
descrita.

Figura 52 – Ramais de esgoto - IBAPE –SP, PUJADAS, F.Z.A.; GOMIDE, T.L.F.; FAGUNDES, J.C.P. e OUTROS, Inspeção
Predial –Check-Up Predial: Guia da Boa Prevenção. São Paulo: Leud, 2009.

Evidentemente, essas características e distribuições devem ser previstas em
projeto, porém, em muitos edifícios, ou em unidades que são reformadas por
seus proprietários, a ventilação do ramal de esgoto não é observada, o que
gera transtornos desagradáveis como mau cheiro nos banheiros, lavabos etc.
O esgoto conduzido pelos ramais de esgoto é ligado à instalação independente
e segue pelos coletores até a caixa de esgoto, situada geralmente no
pavimento térreo, e daí despeja na rede pública de esgoto. Nos casos em que
o esgoto chega num nível abaixo da rede coletora, são projetadas bombas de
recalque próprias para carrear resíduos sólidos e líquidos para a rede pública.
As tubulações de pluviais e de esgoto devem ser distintas e, quando aparentes,
devem ser identificadas em corres diferentes, emprega-se, normalmente, a cor
marrom para as tubulações de águas pluviais e preta para as tubulações de
esgoto.

9.7.2 Principais anomalias e falhas
As anomalias e falhas mais comuns constatadas nos três sistemas hidráulicos
abordados são:
1. Corrosão de tubulações hidráulicas em ferro galvanizado
Elaborado por:

Analisado por:

Professor :

Marcelo Gandra Falcone

Alessandra Aparecida Vieira

Marcelo Gandra Falcone

QUANDO IMPRESSO CONSIDERAR PIRATARIA - CÓPIA NÃO AUTORIZADA
UNINOVE

Rev. B

Engenharia de Avaliações e Perícias
Manutenção Predial e Avaliação de Máquinas
e Equipamentos

16/07/2011
Folha 132/424

As corrosões nas tubulações em ferro galvanizado podem ser internas e/ou
externas, localizadas (por pite), generalizadas ou por erosão.
As tubulações em ferro galvanizado, que foram largamente empregadas em
edificações com mais de 25 anos, e ainda hoje são empregadas principalmente
em tubulações de águas pluviais e esgoto nas edificações, têm uma vida útil
estimada de, aproximadamente, 10 a 15 anos.
As corrosões externas se dão pelo desgaste da camada de galvanização. Esse
desgaste pode ter causa originária na suplantação da idade útil da tubulação,
falta de manutenção dos acabamentos de pintura que protegem a camada de
galvanização contra agentes de deterioração, além de abrasões devido a
procedimentos equivocados de limpeza ou mesmo impactos.
Já as corrosões internas, responsáveis por perda de seção da tubulação, além
de diminuição da seção de trabalho dos tubos, causando perdas de vazão e
aumentos de pressão, são causadas pela ação do próprio fluído, sendo:
esgotos, águas pluviais e água potável.
Cabe destacar que nos esgotos existem compostos químicos agressivos,
resultado de produtos de limpeza ou da própria constituição do esgoto,
envolvendo produtos com base ácida (cloretos, por exemplo), ou de poder
incrustante.
Já as águas pluviais, principalmente em ambientes urbanos, possuem
constituição de pH ácidos e as águas potáveis têm em sua composição adição
de cloro, a fim de manter padrões de potabilidade.
Além das possíveis composições que possam ter os fluídos, a própria ação do
escoamento interno desce junto às paredes das tubulações e provoca os
desgastes entendidos como naturais.
De qualquer forma, a corrosão interna de tubulações pode ser verificada pela
simples observação da tonalidade das águas que saem pelas torneiras, ou
ainda, pela execução de teste com aparelhos de ultrassom, a fim de verificar as
espessuras de tubos, constituindo um procedimento de manutenção preditiva.
Evidentemente, quando a corrosão interna está instalada, ocorrem os
vazamentos.

2. Deformações em tubulações em PVC
È comum observar deformações excessivas em trechos longos de tubos de
PVC, instalados junto aos tetos de subsolos, devido à falta da fixação
adequada com fitas metálicas em trechos curtos.
Elaborado por:

Analisado por:

Professor :

Marcelo Gandra Falcone

Alessandra Aparecida Vieira

Marcelo Gandra Falcone

QUANDO IMPRESSO CONSIDERAR PIRATARIA - CÓPIA NÃO AUTORIZADA
UNINOVE

Rev. B

Engenharia de Avaliações e Perícias
Manutenção Predial e Avaliação de Máquinas
e Equipamentos

16/07/2011
Folha 133/424

Além dessas deformações devido à má fixação dos tubos, há também a ação
dos raios ultravioleta e do calor sobre tubos aparentes em locais externos.
É recomendável que todas as tubulações em PVC estejam enterradas,
envelopadas, pintadas, a fim de ter essa proteção contra a ação solar, além de
impactos, o que pode provocar rupturas e vazamentos, além das deformações.
Em tubulações plásticas, como é o caso das de PVC, podem ocorrer fadigas
devido à existência de sobrepressões, como em tubulações de recalque. Nesse
caso, em projeto há de se prever dispositivos “amortecedores” desses
esforços, a fim de garantir melhor desempenho e maior vida útil das
tubulações.
Assim como as corrosões, as deformações excessivas causam vazamentos e
rupturas de tubo.
3. Vazamentos diversos em tubulações
Os vazamentos nas instalações hidráulicas podem ter suas causas
relacionadas a inúmeras coisas, incluindo as dos itens já mencionados.
Por questões práticas, seguem algumas das mais freqüentes causas
observadas em edificações:

Subdimensionamento de coletores de águas pluviais, incorrendo
em transbordamentos de calhas, alagamentos, empoçamentos etc.;

Falha na execução dos acoplamentos entre calhas, ralos ou
grelhas e o seu condutor, incorrendo em vazamentos junto às tubulações de
águas pluviais;

Falta de limpeza de ralos, calhas, grelhas, lajes de cobertura,
causando entupimentos de coletores de águas pluviais, bem como falta de
limpeza nas próprias caixas de passagem, localizadas em subsolos ou térreos,
causando a obstrução dos condutores (trechos horizontais da tubulação);

Falha na execução de soldas nos encaixes das conexões;

Vibrações internas das tubulações causadas pela pressão da
água, podendo provocar ruptura;

Uso de materiais diferentes e impróprios em reparos nas
tubulações hidráulicas, como resinas base epóxi (tipo durepóxi), para o
“conserto” de trincas em tubos ou “reforços” em emendas;

Emendas em trechos que foram substituídos com tubos de
materiais diferentes, que possuem características e coeficientes de dilatação
diferentes como, por exemplo: emendas entre PVC e ferro galvanizado;

Descargas de água quente, com temperaturas acima de 50º C
em tubulações de esgoto de PVC;
Elaborado por:

Analisado por:

Professor :

Marcelo Gandra Falcone

Alessandra Aparecida Vieira

Marcelo Gandra Falcone

QUANDO IMPRESSO CONSIDERAR PIRATARIA - CÓPIA NÃO AUTORIZADA
UNINOVE

Rev. B

Engenharia de Avaliações e Perícias
Manutenção Predial e Avaliação de Máquinas
e Equipamentos

16/07/2011


Uso de instrumentos pontiagudos para
desentupimento de tubulações, incorrendo na ruptura do tubo.

Folha 134/424

proceder

ao

4. Deterioração das tampas de reservatórios de água
Em diversas edificações, as tampas dos reservatórios de água não atendem
aos requisitos mínimos determinados na ABNT NBR 5.626 – Instalações
Prediais de Água Fria.
Segundo essa norma, os reservatórios devem ser estanques, com tampa ou
porta de acesso, firmemente presa, com vedação que impeça a entrada de
líquidos, poeiras, insetos e outros animais no seu interior.
Sendo assim, não é possível instalar tampas que não permitam a isolação do
reservatório no tocante à entrada de águas pluviais, por exemplo, em
coberturas de edifícios. Também não é adequado que essas tampas sejam
fabricadas com materiais que sofrem deterioração precoce por ação da água.
5.
Reservatórios de água apoiados diretamente sobre o solo ou
enterrados
Para reservatórios com essa condição construtiva, muito utilizada antes de
1998, observa-se que aspectos de vazamentos ou problemas de deficiências
no sistema de impermeabilização são graves, tendo em vista que poderá haver
contaminação da água devido à presença de lençol freático ou vazamentos em
tubulações de esgoto próximas etc.
Além dos aspectos de contaminação e, obviamente, deterioração das paredes
do reservatório, há aspectos relacionados a solapamentos de solos adjacentes,
podendo haver conseqüências danosas à estabilidade estrutural da edificação
ou do próprio reservatório.
Cabe ressaltar que, a partir de 1998, não é mais permitido que os reservatórios
inferiores sejam apoiados diretamente sobre o solo ou enterrados, devendo
haver estrutura com afastamento mínimo de 60 cm em todas as paredes e lajes
de fundo.
6. Presença de tubulações de esgoto dentro de reservatórios de água
É proibida a passagem de tubulações de esgoto ou mesmo de águas pluviais
dentro de reservatórios, sendo que essa situação incorre em risco iminente de
contaminação da água.

Elaborado por:

Analisado por:

Professor :

Marcelo Gandra Falcone

Alessandra Aparecida Vieira

Marcelo Gandra Falcone

QUANDO IMPRESSO CONSIDERAR PIRATARIA - CÓPIA NÃO AUTORIZADA
UNINOVE

Rev. B

Engenharia de Avaliações e Perícias
Manutenção Predial e Avaliação de Máquinas
e Equipamentos

16/07/2011
Folha 135/424

Assim como não deve haver passagem de tubulações de esgoto ou águas
pluviais dentro de reservatórios, também não é permitida a interligação entre
essas tubulações.
7. Falta de pintura nas tubulações ou falta de repintura
È comum a falta de pintura de sinalização e proteção nas tubulações
hidráulicas.
A Norma Regulamentadora de Segurança NR26 trata da sinalização e cores
para orientar, advertir, restringir,identificar equipamentos de segurança ,
tubulações de líquidos e gases, também possíveis áreas de riscos, os
trabalhadores a fim de evitar acidentes nos espaços de trabalho.

As aplicações das cores são:
Vermelho: equipamentos e aparelhos de incêndio
Caixa de alarmes de incêndio, hidrantes, bombas de incêndio,etc.
Não deve ser usada para sinalizar perigo.
Amarelo : em tubulações deve ser usado para gases não liquefeitos, aplicado
também em partes baixas, áreas de passagens para escadas, elevadores e
como fundo de letreiros de advertência,etc.
Branco: faixas de corredores e passarelas, localização de bebedouros, áreas
de armazenagens, zonas de segurança
Preto: canalizações de inflamáveis de alta viscosidade(óleo lubrificante, óleo
combustível, etc.).Pode ser usado com branco, em condições especiais.
Azul : canalizações de ar comprimido, advertência contra uso e movimentação
de equipamentos, avisos de fontes de potência, etc.
Verde: transmite idéia de segurança, localização de EPI, caixas de
equipamento de socorro de urgência, macas, caixa de máscaras, canalização
de água, emblemas de segurança, etc.
Laranja: canalizações com ácidos, partes móveis de máquinas e
equipamentos, dispositivos de corte, bordas de serras, etc.
Púrpura : perigo de irradiações eletromagnéticas de partículas penetrantes
nucleares, portas ou aberturas para locais com materiais radioativos, ou
contaminados com radioatividade, equipamentos produtores de radiação.
Lilás: canalizações que contem álcalis, pode ser usada em refinarias para
indicar lubrificantes.
Elaborado por:

Analisado por:

Professor :

Marcelo Gandra Falcone

Alessandra Aparecida Vieira

Marcelo Gandra Falcone

QUANDO IMPRESSO CONSIDERAR PIRATARIA - CÓPIA NÃO AUTORIZADA
UNINOVE

Rev. B

Engenharia de Avaliações e Perícias
Manutenção Predial e Avaliação de Máquinas
e Equipamentos

16/07/2011
Folha 136/424

Cinza claro: canalizações em vácuo.
Cinza escuro : identificar eletrodutos
Alumínio: canalizações com gases liquefeitos, inflamáveis e combustíveis de
baixa viscosidade (óleo diesel, gasolina,querosene, etc.)
Marrom: pode ser adotado para fluídos não identificados pelas demais cores.
Observa-se que em casos de tubulações de ferro galvanizado, a pintura deve
contribuir em caráter preventivo contra a corrosão, observando os parâmetros
de tipos de tintas, fundos para aderência, fundos anticorrosivos etc.
Em edificações que procedem ao reuso da água de lavagem, águas pluviais
etc., essas tubulações deverão ter expressamente em suas pinturas a
informação “água não potável”.
8. Obstrução interna de tubos devido à falta de replantio de árvores e
outras plantas em jardins ou jardineiras
9 .Evidentemente, existem outras anomalias de origem de projeto e/ou
execução que não foram abordadas, porém, pode-se destacar para a falta de
dispositivos de inspeção em mudanças de direção nas tubulações de águas
pluviais e esgotos, junto aos subsolos; problemas relativos ao
dimensionamento de tubulações com retornos de líquidos junto às unidades
privativas; falta de tubos de ventilação; baixas declividades em tubulações
horizontais de águas pluviais e esgotos, dentre outros.
Em conseqüência das deficiências citadas, cabe listar alguns dos danos
causados:









Consumos excessivos de água e energia devido a vazamentos e consumos
excessivos de bombas, dentre outros equipamentos co-relacionados;
Falta de potabilidade das águas armazenadas e que circulam nas
instalações de água fria;
Deterioração dos componentes e sistemas da construção por infiltração,
causadas por vazamentos hidráulicos;
Deterioração da instalação elétrica, incorrendo em risco de curto-circuito e
incêndios;
Ruptura de porções de terreno, provocando deslizamentos (solapamentos)
e afundamentos, devido a infiltrações de água no solo causadas por ruptura
ou vazamentos de tubulações hidráulicas. Observa-se que em alguns casos
de vazamentos de reservatórios inferiores, enterrados, pode-se ter
problemas de ordem de estabilidade estrutural e perigo à segurança;
Contaminações de lençol freático devido a vazamentos ou rupturas de
tubulações de esgoto;
Contaminações de recursos hídricos naturais, quando há a ligação de
esgotos em águas pluviais, incorrendo na contaminação da galeria de
águas pluviais da rede pública.

Elaborado por:

Analisado por:

Professor :

Marcelo Gandra Falcone

Alessandra Aparecida Vieira

Marcelo Gandra Falcone

QUANDO IMPRESSO CONSIDERAR PIRATARIA - CÓPIA NÃO AUTORIZADA
UNINOVE

Rev. B

Engenharia de Avaliações e Perícias
Manutenção Predial e Avaliação de Máquinas
e Equipamentos

16/07/2011
Folha 137/424

9.7.3 Recomendações e orientações técnica
1) Com relação a problemas e recomendações sobre funcionamento de
bombas de recalque, resumidamente, segue tabela orientativa:
Problemas
Bomba não fornece
água

Baixa pressão

Baixa vazão

Superaquecimento do
motor

Motor não funciona

Excesso de ar na rede
hidráulica
Perda
de
escorvamento

Prováveis causas e Providências
A bomba não está escorvada. Portanto, desligue-a, escorve outra
vez e tente novamente. A bomba não deve ser operada mais do que
30 segundos sem bombeamento, para evitar o superaquecimento e
queima do selo mecânico.
A bomba não está completamente escorvada ou com problemas de
cavitação. Motor com baixa rotação. Rotação no sentido errado.
Manômetro com defeito. Rotores parcialmente obstruídos.
Vazamentos de ar na tubulação de sucção. Chamar o técnico
responsável pela manutenção da bomba.
Motor com baixa rotação. Rotação no sentido errado. Rotores
parcialmente obstruídos. Tubo de sucção ou ralo parcialmente
obstruídos. Chamar o técnico responsável pela manutenção da
bomba.
Conexões dos fios ou voltagem errada. Rotação baixa ou invertida.
Atrito dos rotores nos estágios, devido à má ajustagem. Má
ventilação. Chamar o técnico responsável pela manutenção da
bomba.
Chaves abertas, fusíveis queimados, conexões soltas ou relê de
sobrecarga aberto. Chave centrífuga do motor está inoperante.
Conexões elétricas do motor erradas. Chamar o técnico responsável
pela manutenção da bomba.
Entrada de ar pela tubulação de sucção. Água gasosa. Retirar ar da
tubulação com profissional habilitado.
Entrada de ar pela tubulação de sucção. Água gasosa. Retirar ar da
tubulação com profissional habilitado.

2) Desinfecção e limpeza dos reservatórios e tubulações:
A desinfecção é a operação destinada a reduzir a presença de
microorganismos, patogênicos ou não, a fim de estabelecer parâmetros de
potabilidade na água armazenada. A substância ativa à desinfecção é o cloro
livre, obtido pela dissolução do hipoclorito de sódio na água a ser desinfetada.
Já a limpeza consiste na remoção de materiais e substâncias que ficam
depositados dentro dos reservatórios.
A limpeza deve observar os procedimentos pré-estabelecidos na ABNT NBR
5.626/98, já citada, item 6.5.2.2. Recomenda-se que não sejam empregadas
máquinas de alta pressão para as lavagens das paredes internas dos
reservatórios, podendo haver riscos de ruptura ou perda de aderência nos
sistemas de impermeabilização, quando suas membranas (manta) estão
aparentes.

Elaborado por:

Analisado por:

Professor :

Marcelo Gandra Falcone

Alessandra Aparecida Vieira

Marcelo Gandra Falcone

QUANDO IMPRESSO CONSIDERAR PIRATARIA - CÓPIA NÃO AUTORIZADA
UNINOVE

Rev. B

Engenharia de Avaliações e Perícias
Manutenção Predial e Avaliação de Máquinas
e Equipamentos

16/07/2011
Folha 138/424

É recomendável que a desinfecção e a limpeza sejam feitas, pelo menos, uma
vez ao ano.
Código Sanitário, Lei 13.725/2004, seção 1 , Artigo 27 Alínea III:
"Seção I - Abastecimento de Água para Consumo Humano
Art. 25. ...
Art. 26. ....
Art. 27. Nos projetos, obras e operações de sistemas de abastecimento de
água, públicos ou privados, individuais ou coletivos, devem ser obedecidos os
seguintes princípios gerais, independentemente de outras exigências técnicas
eventualmente estabelecidas:
I – .....
II – ...
III – toda água distribuída por sistema de abastecimento deve ser submetida,
obrigatoriamente, a um processo de desinfecção, de modo a assegurar sua
qualidade do ponto de vista microbiológico e manter concentração residual do
agente desinfetante na rede de distribuição, de acordo com norma técnica;
IV – ...
V – ... "
Como informado anteriormente a NORMA TÉCNICA: NBR 05626/1998 usada
como referencia é: seção 7.6.2:
" 7.6.2 Como uma medida de proteção sanitária, é fundamental que a limpeza e
a desinfecção do reservatório de água potável sejam feitas uma vez por ano.
Um procedimento de eficácia reconhecida deve ser adotado. Recomenda-se
adotar o procedimento a seguir descrito:"
Após a realização de cada desinfecção e limpeza, deve-se atualizar o registro e
a informação, a serem fixados junto à tampa do reservatório.
Também é recomendável que sejam feitos ensaios físico-químicos das águas
armazenadas.
A lei que define o mês de limpeza da caixa d'água é a 10.730/89. Foi revogada
pelo PL 102/07 que deu origem à Lei 14.485/07 que Consolida a Legislação
Municipal referente às datas comemorativas, eventos e feriados do Município
de São Paulo, e dá outras providências. Consta na alínea "c" do inciso "CXXIX"
do artigo 7º desta Lei 14.485 de 19 de julho de 2007 que o mês de julho é o
mês de limpeza das caixas d'águas dos órgãos municipais, orientando para ser
incentivada a limpeza também pela comunidade. Consta também nesta lei ser
o dia 21 de março o dia da água.
Porém,
a
Sabesp
recomenda
em
seu
link:
http://www.sabesp.com.br/CalandraWeb/CalandraRedirect/?temp=2&temp2=3&
proj=sabesp&pub=T&nome=Uso_Racional_Agua_Generico&docid=E50615CE
Elaborado por:

Analisado por:

Professor :

Marcelo Gandra Falcone

Alessandra Aparecida Vieira

Marcelo Gandra Falcone

QUANDO IMPRESSO CONSIDERAR PIRATARIA - CÓPIA NÃO AUTORIZADA
UNINOVE

Rev. B

Engenharia de Avaliações e Perícias
Manutenção Predial e Avaliação de Máquinas
e Equipamentos

16/07/2011
Folha 139/424

526E0D26832571AE0062ED78&db; que as caixas d'água sejam limpas
semestralmente.

Elaborado por:

Analisado por:

Professor :

Marcelo Gandra Falcone

Alessandra Aparecida Vieira

Marcelo Gandra Falcone

QUANDO IMPRESSO CONSIDERAR PIRATARIA - CÓPIA NÃO AUTORIZADA
UNINOVE

Rev. B

Engenharia de Avaliações e Perícias
Manutenção Predial e Avaliação de Máquinas
e Equipamentos

16/07/2011
Folha 140/424

Figura 53 – Cuidados com a Limpeza da Caixa dágua site sabesp em 09/2010.

Em casos de abastecimentos de água por meio de captação de águas
profundas, poços artesianos, recomenda-se que sejam feitos ensaios
periódicos nas saídas do poço e depois do tratamento empregado na água
para eventuais correções.
Observa-se que se tratando de água que abastece, também, outros sistemas,
como é o caso de sistema de ar condicionado central por água gelada, deve-se
fazer outros controles mais rigorosos da água, inclusive em diversos pontos da
instalação, conforme será abordado no item específico desse sistema:
Elaborado por:

Analisado por:

Professor :

Marcelo Gandra Falcone

Alessandra Aparecida Vieira

Marcelo Gandra Falcone

QUANDO IMPRESSO CONSIDERAR PIRATARIA - CÓPIA NÃO AUTORIZADA
UNINOVE

Rev. B

Engenharia de Avaliações e Perícias
Manutenção Predial e Avaliação de Máquinas
e Equipamentos

16/07/2011
Folha 141/424

o Nunca proceder à ligação de esgotos em águas pluviais.
o Limpar e desobstruir ralos, calhas e grelhas de coleta de águas pluviais
periodicamente.
o Limpar ralos internos, sifãos de pias e lavatórios destinados à coleta de
esgotos, a fim de não haver entupimentos.
o Não usar emendas entre tubos com materiais incompatíveis ou, ainda,
proceder a reparos de vazamentos em conexões ou trechos de tubulações
com fissuras com materiais do tipo durepóxi.
Os itens de recomendações abaixo foram resumidos da ABNT NBR 5.626,
itens 7.4 e 7.5, referentes à manutenção de tubulações, torneiras, registros e
válvulas da instalação predial de água fria.
1.
Os suportes das tubulações devem estar em bom estado e com
espaçamentos adequados para que não haja problemas de deformações
excessivas e vazamentos.
2.
Juntas com vazamentos devem ser apertadas, para casos de rosca, ou
refeitas. Caso não seja possível eliminar os vazamentos, deve-se proceder a
troca dos trechos de tubulações entre conexões, evitando-se emendas e
uniões de materiais incompatíveis (por exemplo: ferro galvanizado com cobre
ou PVC).
3.
Usar adaptadores na execução de novas juntas, principalmente em
casos de rosca para soldas.
4.
Em casos de corrosão nas tubulações, as mesmas deverão ser
investigadas, verificando-se a abrangência e o tipo de corrosão, além da
necessidade de troca de tubulações.
5.
Executar pinturas e repinturas periódicas, obedecendo às identificações
das cores, conforme o tipo de tubulação.
Para as pinturas, deve-se observar o material do tubo, a fim de se escolher a
melhor tinta e a necessidade de se aplicar fundo para promover a aderência ou
minimizar questões de corrosão por ação direta da umidade do ar.
6.
Qualquer sinal de mau funcionamento, com problemas de fechamento
ou perda de vazão nas torneiras, deve-se fazer as ações corretivas, tais como:
aperto em partes móveis; troca de vedantes (courinho) ou, ainda, troca da
própria torneira.

Elaborado por:

Analisado por:

Professor :

Marcelo Gandra Falcone

Alessandra Aparecida Vieira

Marcelo Gandra Falcone

QUANDO IMPRESSO CONSIDERAR PIRATARIA - CÓPIA NÃO AUTORIZADA
UNINOVE

Rev. B

Engenharia de Avaliações e Perícias
Manutenção Predial e Avaliação de Máquinas
e Equipamentos

16/07/2011
Folha 142/424

Observa-se que, em casos de gotejamento, há o desperdício de água, além de
aumento de consumo.
7.
Os crivos de chuveiros, arejadores e outros componentes devem ser
limpos dentro da periodicidade recomendada pelos fabricantes.

8.
As válvulas de descargas devem ter inspeções periódicas, a fim de
verificar desperdícios de águas devido à má regulagem ou necessidade de
manutenção, como troca de molas e vedações internas.

9.
Válvulas redutoras de pressão devem ter inspeção e manutenção
periódicas realizada por empresa especializada. Seu funcionamento deve ser
aferido periodicamente pela leitura em manômetros, instalados na tubulação
depois dessas válvulas, a fim de verificar a pressão de serviço.

9.7.4 Curiosidades e dicas
 Banheiros, cozinhas e áreas de serviço sem utilização por longo tempo
podem acarretar mau cheiro, em função da ausência de água nos e sifões.
Para eliminar o problema, basta adicionar uma pequena quantidade de óleo
de cozinha para a formação de uma película, evitando-se a evaporação.
 O sistema de aviso e/ou ladrão não deve ter as suas tubulações obstruídas.
 Recomendam-se inspeções periódicas nas válvulas redutoras de pressão, a
fim de verificar eventuais desgastes. A inspeção, regulagem e manutenção
devem ser feitas por profissionais habilitados.
 O sistema de combate a incêndio não pode ser modificado e o volume
reservado ao combate de incêndio não deve ser alterado.
 As bombas de recalque devem funcionar em rodízio. Manter sempre uma
bomba em espera. O rodízio deve ser feito a cada três meses, cuidando
para que antes da partida o corpo da bomba esteja cheio de líquido, pois,
se operar mais de 30 segundos a seco, as faces de contato do selo
mecânico serão danificadas, resultando em vazamento pelo eixo da bomba.
Para o escorvamento da bomba, reparo da bomba para funcionamento, devese seguir as instruções:
1.
2.
3.
4.

Fechar o registro da tubulação de descarga;
Remover o plug da parte superior do corpo;
Enchê-lo completamente com água; e
Recolocar o plug.

Elaborado por:

Analisado por:

Professor :

Marcelo Gandra Falcone

Alessandra Aparecida Vieira

Marcelo Gandra Falcone

QUANDO IMPRESSO CONSIDERAR PIRATARIA - CÓPIA NÃO AUTORIZADA
UNINOVE

Rev. B

Engenharia de Avaliações e Perícias
Manutenção Predial e Avaliação de Máquinas
e Equipamentos

16/07/2011
Folha 143/424

Recomenda-se para a manutenção preventiva ou corretiva a contratação de
empresa especializada.
 A bomba de incêndio deve ser acionada conforme periodicidade.
 Os registros existentes nos subsolos e barriletes devem ser
completamente
abertos
e
fechados
conforme periodicidade
recomendada pelo fabricante.
 Verificar e manter limpos os ralos e grelhas, bem como as calhas na
cobertura.
Como desentupir uma pia
Com o auxílio de luvas de borracha, um desentupidor e uma chave inglesa,
seguir os seguintes passos:

Figura 54 –Pia- IBAPE –SP, PUJADAS, F.Z.A.; GOMIDE, T.L.F.; FAGUNDES, J.C.P. e OUTROS, Inspeção Predial –CheckUp Predial: Guia da Boa Prevenção. São Paulo: Leud, 2009.

1. Encha a pia de água;
2. Coloque o desentupidor sobre o ralo, pressionando-o para
baixo e para cima, observando se ele está totalmente
submerso;
3. Quando a água começar a descer, continue a movimentar o
desentupidor, deixando a torneira aberta;
4. Se a água não descer, tente com a mão ou com o auxílio de
uma chave inglesa, desatarraxar o copo do sifão; nesse
copo ficam depositados os resíduos, geralmente
responsáveis pelo entupimento, mas não esqueça de
colocar um balde embaixo do sifão, pois a água pode cair no
chão;
5. Com um arame, tente desobstruir o ralo da pia, de baixo
para cima, algumas vezes; os resíduos se localizam nesse
trecho do encanamento, daí a necessidade de usar um
arame;
6. Coloque o copo que você retirou do sifão; não convém
colocar produtos à base de soda cáustica dentro da
tubulação de esgoto;
7. Depois do serviço pronto, abra a torneira e deixe correr água
em abundância, para limpar bem.
Elaborado por:

Analisado por:

Professor :

Marcelo Gandra Falcone

Alessandra Aparecida Vieira

Marcelo Gandra Falcone

QUANDO IMPRESSO CONSIDERAR PIRATARIA - CÓPIA NÃO AUTORIZADA
UNINOVE

Rev. B

Engenharia de Avaliações e Perícias
Manutenção Predial e Avaliação de Máquinas
e Equipamentos

16/07/2011
Folha 144/424

Como consertar uma torneira que está vazando

Figura 55 –Torneira- IBAPE –SP, PUJADAS, F.Z.A.; GOMIDE, T.L.F.; FAGUNDES, J.C.P. e OUTROS, Inspeção Predial –
Check-Up Predial: Guia da Boa Prevenção. São Paulo: Leud, 2009.

 Utilizando uma chave de fenda, desrosqueie o parafuso que prende a
cruzeta.
 Com o auxílio de um alicate de bico, desrosqueie a porca que prende a
canopla para poder ter acesso ao mecanismo de vedação.
 Com o auxílio de um alicate de bico, desrosqueie o mecanismo de vedação
do corpo.
Como desentupir um chuveiro

Figura 56 – Chuveiro- IBAPE –SP, PUJADAS, F.Z.A.; GOMIDE, T.L.F.; FAGUNDES, J.C.P. e OUTROS, Inspeção Predial –
Check-Up Predial: Guia da Boa Prevenção. São Paulo: Leud, 2009.






Retire as capa protetora do crivo.
Retire a proteção metálica (quando houver).
Retire o plástico ou borracha preta.
Com o auxílio de uma escova de dentes, limpe o crivo desobstruindo os
orifícios que podem ter acumulado detritos.

Como regular a caixa de descarga acoplada da bacia sanitária
Regulagem:
 Com cuidado, abra e retire a tampa da caixa acoplada.
 Com a ajuda de um alicate, rosqueie a bóia, deixando-a mais firme para
que, quando a caixa estiver cheia, não permita que a água transborde pelo
ladrão.
Substituição:
 Com cuidado, abra e retire a tampa da caixa acoplada.
 Desrosqueie a bóia.
Elaborado por:

Analisado por:

Professor :

Marcelo Gandra Falcone

Alessandra Aparecida Vieira

Marcelo Gandra Falcone

QUANDO IMPRESSO CONSIDERAR PIRATARIA - CÓPIA NÃO AUTORIZADA
UNINOVE

Rev. B

Engenharia de Avaliações e Perícias
Manutenção Predial e Avaliação de Máquinas
e Equipamentos

16/07/2011
Folha 145/424

 Leve-a a um depósito de materiais de construção para que sirva de modelo
para a compra de uma nova; com a nova bóia em mãos, encaixe-a e
rosqueie-a exatamente no local de onde a antiga foi retirada.
TESTES DE VAZAMENTOS DE ÁGUA
Os testes abaixo, recomendados por várias companhias de
distribuição de água, podem ser realizados periódicamente pelo zelador:
1. Na válvula ou na caixa de descarga;
2. Em reservatórios (cisternas) de edifícios;
3. No cano alimentado diretamente pela rede.
Na válvula ou na caixa de descarga:
1. Jogue cinza de cigarro no vaso sanitário;
2. O normal é a cinza ficar depositada no fundo do vaso;
3. Em caso contrário, é sinal de vazamento na válvula ou na
caixa de descarga.
OBSERVAÇÃO: Nas bacias cuja saída da descarga for para trás (direção da
parede), deve-se fazer o teste esgotando-se a água. Se a bacia voltar a
acumular água, há vazamento na válvula ou na caixa de descarga.

Em reservatórios (cisternas) de edifícios:
1. Feche o registro de saída do reservatório do subsolo;
2. Feche completamente a torneira da bóia;
3. Marque no reservatório o nível da água e, após uma hora,
no mínimo, veja se ele baixou.

Em caso afirmativo, há vazamento no cano alimentado diretamente pela
rede:
1. Feche o registro do cavalete;
2. Abra uma torneira alimentada diretamente pela rede da
companhia de água (torneira do jardim, por exemplo);
3. Espere até a água parar de correr;
4. Coloque um copo cheio de água na boca da torneira;
5. Se houver sucção da água do copo pela torneira, é sinal que
existe vazamento no cano alimentado diretamente pela rede.
Elaborado por:

Analisado por:

Professor :

Marcelo Gandra Falcone

Alessandra Aparecida Vieira

Marcelo Gandra Falcone

QUANDO IMPRESSO CONSIDERAR PIRATARIA - CÓPIA NÃO AUTORIZADA
UNINOVE

Rev. B

Engenharia de Avaliações e Perícias
Manutenção Predial e Avaliação de Máquinas
e Equipamentos

16/07/2011
Folha 146/424

9.8 Sistema de Instalações de gás

9.8.1. Descrição e finalidade do sistema
As instalações de gás são compostas pelo conjunto de tubulações e
equipamentos, aparentes ou embutidos, destinados ao transporte e controle do
fluxo de gases em uma edificação. Assim, os componentes do sistema de
instalações de gás são: tubulações, registros, válvulas e medidores de vazão.
O gás utilizado pode ser o gás liquefeito de petróleo (GLP) ou gás natural (GN).
No caso do gás GLP, este é mais pesado que o ar e caso ocorra vazamento,
ele se acumulará junto ao piso.
As instalações de GLP merecem cuidados especiais, pois qualquer vazamento
poderá ocasionar situação de risco, tendo em vista que em contato com o
oxigênio do ar e com uma possível faísca, pode ocorrer uma explosão.
Já no caso do GN, por ser mais leve que o ar, o seu vazamento é menos
perigoso pois facilita a dispersão, porém não se pode deixá-lo confinado, ou
seja, onde houver tubulações aparentes, a ventilação deve ser permanente e
obrigatória.
As tubulações aparentes por onde passam o gás devem ser pintadas na cor
amarela, conforme ABNT NBR 12.694, e não devem passar no interior de
dutos de lixo, ar condicionado, shafts hidráulicos, reservatórios de água, dutos
para incineradores de lixo, poços de elevadores, compartimentos de
equipamentos elétrico, compartimentos destinados a dormitórios, poços de
ventilação, dente outros. O shaft da instalação de gás deverá ter ventilação
permanente e adequada nas partes superior e inferior, sendo que esses vazios
devem ser sempre visitáveis.
Os materiais comumente usados na execução das prumadas e ramais de
distribuição são tubos de cobre, sem costura, ou tubos de aço, com ou sem
costura, preto ou galvanizado.
As edificações normalmente são dotadas de rede de gás, para alimentação do
fogão, forno, podendo ainda alimentar caldeiras, aquecedores de passagem,
máquinas de secar roupa, lareiras, churrasqueiras e demais.
Cabe, por fim, destacar os tipos de abastecimento de gás existentes:
 GN: fornecido por concessionária de serviços públicos, havendo entrada e
cavalete de gás, com ou sem válvula de segurança, que interrompe o
fornecimento de gás à medida que a pressão aumenta em relação a um
parâmetro pré-estabelecido, pois considera que há vazamento interno na
rede;
Elaborado por:

Analisado por:

Professor :

Marcelo Gandra Falcone

Alessandra Aparecida Vieira

Marcelo Gandra Falcone

QUANDO IMPRESSO CONSIDERAR PIRATARIA - CÓPIA NÃO AUTORIZADA
UNINOVE

Rev. B

Engenharia de Avaliações e Perícias
Manutenção Predial e Avaliação de Máquinas
e Equipamentos

16/07/2011
Folha 147/424

 GLP: pode ser fornecido em botijões ou cilindros, por empresas
especializadas, tipo Ultragaz.
Poderá haver centrais de gás GLP com cilindros fixos, que são reabastecidos
por caminhões dessas empresas.
Ainda há, em muitas edificações residenciais antigas, os botijões de gás
instalados em áreas de serviços, embaixo de pias de cozinhas, oferecendo
altos riscos à segurança da edificação.

9.8.2. Principais anomalias e falhas
As anomalias e falhas mais comuns nas instalações de gás, independente do
tipo de gás fornecido, são:
1. Vazamentos de gás pelas tubulações, conexões, válvulas etc.
 O vazamento de gás, sem dúvida, é uma anomalia que oferece grande risco
à integridade física dos usuários e da edificação, tendo em vista que pode
haver explosões, incêndios, intoxicações, dentre outros danos.
 O vazamento de gás poderá estar relacionado a problemas oriundos de má
qualidade de soldas das tubulações, sendo esse um problema construtivo,
apesar de que as instalações são entregues após testes de estanqueidade
de acordo com as normas da ABNT e das concessionárias.
 Podem-se observar, também, problemas relacionados à falta de
manutenção e controle de válvulas, flexíveis cortados, além de corrosões
eletroquímicas em tubulações.
 Observa-se, ainda, que em instalações de gás GLP não é permitido o uso
de tintas ou fibras vegetais (tais como estopa) como vedantes em tubos
rosqueáveis, sendo que esses devem ser compatíveis com o GLP.
 È indispensável o uso de dispositivos de segurança, como válvulas de
bloqueio automáticas, reguladores de pressão, além de detectores de gás
fixos ou manuais a serem utilizados periodicamente pelo pessoal da
manutenção.

2. Corrosão nas tubulações
 Podem ser causadas devido à ação de águas agressivas ou outros
elementos agressivos.
Elaborado por:

Analisado por:

Professor :

Marcelo Gandra Falcone

Alessandra Aparecida Vieira

Marcelo Gandra Falcone

QUANDO IMPRESSO CONSIDERAR PIRATARIA - CÓPIA NÃO AUTORIZADA
UNINOVE

Rev. B

Engenharia de Avaliações e Perícias
Manutenção Predial e Avaliação de Máquinas
e Equipamentos

16/07/2011
Folha 148/424

 Cabe destacar que tubulações enterradas devem ser protegidas por
canaletas de concreto, pintadas com material impermeabilizante, a fim de
não existirem infiltrações.
 A falta de proteção de tubulações enterradas pode causar corrosões nas
tubulações de gás, além de rompimentos.

3. Proximidade de instalações elétricas junto a tubulações de gás
Segundo a ABNT NBR 15.526 – Instalações Internas de gás Liquefeito de
Petróleo (GLP) – Projeto e Execução, e a Norma RIP 2008 – 4 da COMGAS
(disponível no Site da COMGAS), uma tubulação de gás tipo GLP não deve
passar próxima de instalações elétricas, a não ser que obedeça à seguinte
distância mínima:
 0,3 m de afastamento mínimo de condutores de eletricidade, se estes forem
protegidos por conduítes; em casos contrários, esse afastamento deverá
ser de, no mínimo, 0,5 m;
 Ter afastamento das demais tubulações para que possa ser realizada sua
manutenção;
 Em casos de sobreposições, a tubulações, a tubulação de GLP deverá ficar
abaixo de todas as outras.
 Com relação às instalações com gás natural, cabe o mesmo tipo de
observação.
Essa medida de afastamento entre instalações de gás e elétricas tem como
intuito a segurança, devendo ser observada na fase de projeto, porém em
situações de reformas ou desvios de linhas, os condomínios deverão observar
essa medida.

9.8.3 Itens de inspeção: Instalações de Gás (GLP e Botijão):
 Decreto 32.329/92 - SEÇÃO 9.3 – Instalações Prediais: 9.3.2.2 – O
armazenamento de recipientes de gás deverá estar fora das edificações, em
ambiente exclusivo dotado de aberturas para ventilação permanente.
 Decreto 32.329/92 - SEÇÃO 17.J – Condições Construtivas especiais: 17.J.6
– As instalações permanentes de gás combustível deverão atender às NTC
da Companhia de Gás de São Paulo – COMGÁS
 Decreto 24.714/87: ART 5. - Não será permitida a utilização de gás em
botijões ou cilindros nas edificações que disponham de instalação interna de
gás canalizado, situadas em logradouros já servidos por rede de distribuição
de gás canalizado.

Elaborado por:

Analisado por:

Professor :

Marcelo Gandra Falcone

Alessandra Aparecida Vieira

Marcelo Gandra Falcone

QUANDO IMPRESSO CONSIDERAR PIRATARIA - CÓPIA NÃO AUTORIZADA
UNINOVE

Rev. B

Engenharia de Avaliações e Perícias
Manutenção Predial e Avaliação de Máquinas
e Equipamentos

16/07/2011
Folha 149/424

 Instrução Técnica Nº 28/1/2004 – CORPO DE BOMBEIROS: As tubulações
aparentes devem:
a) Ter as distâncias mínimas entre a tubulação de gás e condutores de
eletricidade de 0,30 m ( trinta centímetros ), se o condutor for protegido
por conduíte e 0,50 m ( cinqüenta centímetros ) , nos casos contrários;
b) Ter um afastamento das demais tubulações suficiente para ser
realizada manutenção nas mesmas;
c) Ter afastamento de no mínimo 2 m ( dois metros ) de pára-raios e
seus respectivos pontos de aterramento de acordo com a NBR 5419/93;
d) Em caso de superposição de tubulação a tubulação de gás deve ficar
abaixo das outras tubulações.
 Em caso de centrais de GLP consultar: NBR 15523 - 2004 - Central De Glp
9.8.4. Recomendações e orientações técnicas
Para melhor controle e prevenção contra os problemas de vazamentos e danos
deles decorrentes, têm-se algumas orientações:







Observa-se que alguns empreendimentos fazem uso de uma fita específica
da marca Torofita ao redor dos trechos de tubulações de gás,
principalmente soldas, que passam perto de instalações elétricas. Alerta-se
que a norma não especifica esse tipo de solução, mas pode-se fazer estudo
e verificar especificações desse material a fim de facilitar a solução do
problema.
Não utilizar a central de GLP e Centrais de medidores como depósito de
materiais de qualquer natureza. Tais centrais deverão possuir ventilação
natural permanente.
Verificar o prazo de validade das mangueiras flexíveis, trocando-as quando
necessário.
Quanto ao abastecimento a granel de GLP; para cilindros denominados P190, os operadores deverão sempre visualizar um ao outro para que, numa
emergência, os procedimentos de segurança sejam efetuados; assim, não
deve ter nenhum obstáculo entre o caminhão abastecedor e o cilindro a ser
abastecido, a mangueira flexível deve estar em linha reta e o zelador não
deve ficar junto da equipe que está abastecendo.

È vedado que a mangueira flexível passe por:





Áreas internas às edificações, em locais sujeitos ao tráfego de veículos
sobre a mangueira;
Nas proximidades de fontes de calor ou fontes de ignição, como tubulações
de vapor, fornos etc.;
Em áreas sociais, tais como hall, salões de festas, piscinas, play-grounds;
Próximo a aberturas no piso, como ralos, caixas de gordura, esgoto,
bueiros, galerias subterrâneas e similares;

Elaborado por:

Analisado por:

Professor :

Marcelo Gandra Falcone

Alessandra Aparecida Vieira

Marcelo Gandra Falcone

QUANDO IMPRESSO CONSIDERAR PIRATARIA - CÓPIA NÃO AUTORIZADA
UNINOVE

Engenharia de Avaliações e Perícias
Manutenção Predial e Avaliação de Máquinas
e Equipamentos





Rev. B
16/07/2011
Folha 150/424

Quanto à central de GLP, a mesma deve atender às condições mínimas de
segurança, possuindo extintores de pó químico em quantidade compatível
com o volume armazenado; não possuir ralos, grelhas e demais vãos a uma
distância inferior a 1,5 m da central; possuir afastamento mínimo de 3,00 m
de materiais de fácil combustão e pontos de ignição; estar no pavimento
térreo e ser bem ventilada;
Uso de detectores de gás automatizados ou manuais para detecção de
vazamentos.

Em função do exposto, alerta-se aos responsáveis dos edifícios sobre a
necessidade de vistorias periódicas nas instalações de gás, observando se há
odores característicos provenientes de algum vazamento, chamando, como já
observado, as operadoras responsáveis pelo fornecimento do gás, pois essas
possuem um rol de empresas de manutenção que farão os serviços dentro das
normas, com engenheiro responsável, habilitado.
9.8.5. Curiosidades e dicas






Sempre que o sistema não for utilizado constantemente, ou em caso de
ausência prolongada no imóvel, mantenha os registros e as torneiras de gás
fechados.
Ao testar ou procurar vazamentos num equipamento ou tubulação
aparentes, utilizar espuma de salão, nunca fósforos ou material inflamável.
Não pendurar objetos nas tubulações aparentes de gás.
Na cidade de São Paulo, de acordo com o Decreto municipal n.24.714, de
07/10/97, não é permitida a utilização de gás em botijões ou cilindros nas
edificações que disponham de instalação interna de gás canalizado,
situadas em logradouros com rede de distribuição de gás natural da
concessionária.

Recomendações da Cartilha do CONTRU:

Elaborado por:

Analisado por:

Professor :

Marcelo Gandra Falcone

Alessandra Aparecida Vieira

Marcelo Gandra Falcone

QUANDO IMPRESSO CONSIDERAR PIRATARIA - CÓPIA NÃO AUTORIZADA
UNINOVE

Rev. B

Engenharia de Avaliações e Perícias
Manutenção Predial e Avaliação de Máquinas
e Equipamentos

16/07/2011
Folha 151/424

Recomendações da Cartilha do CONTRU:

Figura 57 – GLP – Recomendações da Cartilha do CONTRU.

Elaborado por:

Analisado por:

Professor :

Marcelo Gandra Falcone

Alessandra Aparecida Vieira

Marcelo Gandra Falcone

QUANDO IMPRESSO CONSIDERAR PIRATARIA - CÓPIA NÃO AUTORIZADA
UNINOVE

Rev. B

Engenharia de Avaliações e Perícias
Manutenção Predial e Avaliação de Máquinas
e Equipamentos

16/07/2011
Folha 152/424

Recomendações da Cartilha do CONTRU:

Elaborado por:

Analisado por:

Professor :

Marcelo Gandra Falcone

Alessandra Aparecida Vieira

Marcelo Gandra Falcone

QUANDO IMPRESSO CONSIDERAR PIRATARIA - CÓPIA NÃO AUTORIZADA
UNINOVE

Rev. B

Engenharia de Avaliações e Perícias
Manutenção Predial e Avaliação de Máquinas
e Equipamentos

16/07/2011
Folha 153/424

9.9 Sistema de impermeabilização

9.9.1. Descrição e finalidade do sistema
A impermeabilização é o tratamento mais importante que deve estar presente
em todas as edificações, protegendo-as contra as infiltrações de líquidos,
gases e vapores; onde o custo na fase inicial chega a + ou – 3% do valor da
edificação, e quando não executada com qualidade técnica, pode ocasionar
despesas da ordem de + ou – 20%, e em alguns casos irreparáveis.
Tal proteção, muito embora não visível, encontra-se instalada sobre fundações,
cortinas, lajes subpressão, poços de elevador, lajes, jardineiras, áreas frias,
terraços, piscinas, decks, juntas de dilatação, reservatórios inferior e superior
etc.
Para atender a todas essas áreas deve-se ter sempre um projeto de
impermeabilização, em que indicará os sistemas e materiais específicos à sua
aplicação contemplando custos, garantia, vida útil etc.
Os principais sistemas de impermeabilização são:





Membranas flexíveis moldadas in loco: emulsões asfálticas; soluções
asfálticas; emulsões acrílicas; asfaltos oxidados; asfaltos modificados;
elastômeros em solução
Mantas flexíveis pré-fabricadas: mantas asfálticas; mantas elastoméricas;
mantas poliméricas;
Membranas rígidas moldadas in loco: cristalização; argamassa rígida.

A importância da impermeabilização, além de permitir a habitabilidade e
funcionalidade da construção civil, é relevada no objetivo de proteger a
edificação de inúmeros problemas patológicos que poderiam surgir com
infiltração de água, integrada ao oxigênio e a outros componentes agressivos
da atmosfera, como gases poluentes, chuvas ácidas e ozônio, já que uma
grande quantidade de materiais constituintes da construção civil sofre um
processo de deterioração e de degradação, quando em presença dos meios
agressivos da atmosfera.

Elaborado por:

Analisado por:

Professor :

Marcelo Gandra Falcone

Alessandra Aparecida Vieira

Marcelo Gandra Falcone

QUANDO IMPRESSO CONSIDERAR PIRATARIA - CÓPIA NÃO AUTORIZADA
UNINOVE

Rev. B

Engenharia de Avaliações e Perícias
Manutenção Predial e Avaliação de Máquinas
e Equipamentos

16/07/2011
Folha 154/424

Essas proteções, ou camadas impermeáveis, encontram-se instaladas tanto
em trechos das ÁREAS COMUNS do edifício, como em trechos das ÁREAS
PRIVATIVAS das unidades autônomas.

Nas áreas comuns:
Nos subsolos, a camada impermeável normalmente encontra-se instalada nas
cortinas e lajes em contato com o solo, sempre acompanhado de um bom
sistema de drenagem para retirar a água do subsolo por meio de bombas. Tal
camada encontra-se protegendo o concreto armado das estruturas dos poços
de elevadores e dos reservatórios enterrados contra a infiltração d’água do
lençol freático, ou da umidade do solo que por capilaridade atinge as
estruturas.
Todas as lajes expostas ao intemperismo, ou seja, aquelas sujeitas às chuvas
e à incidência direta dos raios solares, as quais abrigam, no térreo, o
playground, os jardins, jardineiras e floreiras, as quadras de esporte, as áreas
de circulação de pedestres e de veículos, as áreas de estacionamento, mesmo
aquelas sob pilotis; as piscinas; o deck; as áreas de lazer com churrasqueira,
juntas de dilatação etc.; também se encontram protegidas por um sistema de
impermeabilização.

Nas áreas privativas:
As áreas da unidade autônoma exposta às águas de chuva, de lavagem e de
banho, sejam elas da cozinha, da área de serviços, dos banheiros, dos
terraços, varandas ou sacadas, jardineiras, saunas e piscinas, também contêm
uma proteção impermeável compatível com o processo de sua utilização.
9.9.2. Principais anomalias e falhas
A presença indesejável de água se origina basicamente por meio de: ascensão
capilar de umidade do solo; infiltração de água decorrente de vazamentos ou
penetração por frestas ou fissuras provenientes de movimentações térmicas,
trincas em fachadas, caixas de luz (expostas), modificações e condensação de
vapor por deficiência de ventilação.
Problemas relacionados com a presença de umidade apresentam-se com alta
incidência entre as principais anomalias.
As infiltrações de água nas edificações, de maneira geral, são consideradas um
dos principais agentes de degradação de elementos e componentes
construtivos.
Elaborado por:

Analisado por:

Professor :

Marcelo Gandra Falcone

Alessandra Aparecida Vieira

Marcelo Gandra Falcone

QUANDO IMPRESSO CONSIDERAR PIRATARIA - CÓPIA NÃO AUTORIZADA
UNINOVE

Rev. B

Engenharia de Avaliações e Perícias
Manutenção Predial e Avaliação de Máquinas
e Equipamentos

16/07/2011
Folha 155/424

Diante dessa realidade, destaca-se a importância da elaboração do projeto de
impermeabilização ou reimpermeabilização, conforme definido na Norma
Técnica ABNT NBR 9.575/2003, e principalmente da execução dos serviços
pertinentes ao sistema, que deverão ser realizados exclusivamente por
profissional habilitado e especializado na área de impermeabilização.
As anomalias e falhas mais freqüentes do sistema são:
1. Descolamentos da manta na região de rodapé, incorrendo em formações de
fissuras no revestimento das paredes e/ou fachadas;
2. Descolamento da manta em regiões de ralos, soleiras, peitoris etc.;
3. Falhas nas emendas entre panos de mantas;
4. Falhas no tratamento de juntas de dilatação;
5. Perfurações na manta por razões diversas, tais como: fixação de peitoris,
antenas coletivas, raízes axiais e profundas etc.;
6. Especificações inadequadas de materiais;
7. Ressecamento e/ou craqueamento do sistema impermeabilizante por falta
de proteção mecânica;
8. Falta de camada separadora entre a membrana impermeabilizante e
camada de proteção mecânica;
9. Falta de junta de dilatação em proteção mecânica, gerando fissuras de
retração;
10. Falta de reforço de telas em mudança de base, ocasionando fissuras de
dilatação térmica dos diferentes materiais;
11. Falta de tratamento adequado da base, como arredondamento de cantos e
arestas, gerando pontos irregulares e perfurantes nas membranas;
12. Falta de caimentos para os ralos, incorrendo em problemas de
empoçamento de água sobre os pisos e conseqüentes problemas de
eflorescências e manchamentos, entre outras;
13. Falta de impermeabilização no teto dos reservatórios, que ocasiona a
oxidação das armaduras provenientes da condensação da água e do gás
do cloro presente na água.
Todas as anomalias e falhas listadas geram infiltrações de água na edificação
e comprometimento da vida útil do sistema, e o comprometimento dos
revestimentos e da estrutura.
As principais anomalias causadas em outros sistemas construtivos decorrentes
do comprometimento da impermeabilização são:
1.
2.
3.
4.

Corrosão de armadura e degradação do concreto;
Corrosão de superfícies metálicas;
Apodrecimento de madeiras;
Eflorescência e formações de fissuras em revestimento de maneira geral;

Elaborado por:

Analisado por:

Professor :

Marcelo Gandra Falcone

Alessandra Aparecida Vieira

Marcelo Gandra Falcone

QUANDO IMPRESSO CONSIDERAR PIRATARIA - CÓPIA NÃO AUTORIZADA
UNINOVE

Rev. B

Engenharia de Avaliações e Perícias
Manutenção Predial e Avaliação de Máquinas
e Equipamentos

16/07/2011
Folha 156/424

5. Proliferação de bolor, manchas e umidades em revestimentos ou
mobiliários;
6. Descolamentos dos revestimentos em geral;
7. Formação de bolhas na pintura, além de outras manchas;
8. Curtos-circuitos em instalações elétricas;
9. Carbonatação junto a pisos.

Todas essas anomalias geram altos custos de recuperação e correção, sendo
em alguns casos irreparáveis.
As anomalias descritas podem causar, ainda, danos à saúde dos usuários,
propiciando condições favoráveis para a manifestação de doenças
respiratórias, pois o ambiente fica insalubre, sem falar no desconforto físico e
no desgaste emocional do usuário, que sofre com a deterioração de seu bem
patrimonial, além de diminuir a vida útil do imóvel. Como também o alto custo
do seu reparo e o desconforto de ter que conviver com a obra durante o
período da sua execução.
9.9.3 Recomendações e orientações técnicas
A recomendação é sempre que aparecer uma umidade, eflorescência ou
infiltração, deve-se contatar um profissional habilitado e especializado na área
de impermeabilização, para que este, por meio de suas experiências, testes
hidrostáticos e inspeções, possa elaborar um relatório técnico apontando as
causas que originaram essa patologia, bem como a orientação técnica à sua
correção.
O olho clínico do técnico irá detectar a existência de umidade ou infiltração nos
diversos elementos construtivos, tais como: estruturas, reservatórios de água,
piscinas, fachadas, coberturas e instalações diversas, sem a necessidade de
quebrar toda a área.
Alerta-se que o sistema de impermeabilização é “passivo de manutenção
preventiva” e deve sempre que detectado ser corrigido de imediato por
profissional habilitado. Não chegar ao ponto da manutenção corretiva, pois irá
ocasionar um custo muito elevado a sua correção e a insatisfação das pessoas
que irão conviver com essa reforma. No entanto, é possível tomar precauções
no sentido de não danificar ou comprometer o sistema, quais sejam: não utilizar
máquinas de alta pressão para limpeza de reservatórios; lavagem de
revestimentos em geral com adição de produtos químicos não recomendados;
não executar perfurações em lajes ou locais impermeabilizados para fixação de
antenas, hastes de para-raios, equipamentos de playground, rufos, postes, ou
qualquer reforma antes de consultar um técnico da área.

Elaborado por:

Analisado por:

Professor :

Marcelo Gandra Falcone

Alessandra Aparecida Vieira

Marcelo Gandra Falcone

QUANDO IMPRESSO CONSIDERAR PIRATARIA - CÓPIA NÃO AUTORIZADA
UNINOVE

Rev. B

Engenharia de Avaliações e Perícias
Manutenção Predial e Avaliação de Máquinas
e Equipamentos

16/07/2011
Folha 157/424

Além dos aspectos já citados, observa-se a importância na escolha correta de
vegetações para o plantio e manutenção em jardineiras, tendo em vista que
plantas com raízes axiais e profundas perfuram a impermeabilização, penetram
no tubo de dreno e causam dilatações em suas paredes por expansões das
raízes, ocasionando trincas.
Considerada a dificuldade de acesso ao sistema de impermeabilização, visto
que o mesmo normalmente não se encontra aparente ou acessível,
recomenda-se que a manutenção seja executada segundo as recomendações
dos manuais e instruções dos fabricantes, fornecedores e construtores, por
profissional habilitado e especializado, para que sejam preservadas as
condições de eficiência previstas.
Tem-se verificado que as infiltrações que aparecem junto às áreas
impermeabilizadas nem sempre são provenientes da falha do sistema de
impermeabilizadas nem sempre são provenientes da falha do sistema de
impermeabilização. Recomendamos a elaboração de testes hidrostáticos por
profissional habilitado e especializado na área para verificação da causa que
vem ocasionando essa patologia.
Normalmente a garantia oferecida nos sistemas de impermeabilização é de 5
(cinco) anos, mas sabemos que a maioria dos sistemas aplicados, quando
executados de acordo com a norma, atingem mais de 15 anos em estado
satisfatório.
Isso mostra que o sistema de impermeabilização é passivo de manutenção,
enquanto o material aplicado ainda responde pela sua performance e vida útil.

9.9.4. Curiosidade e dicas







A maioria dos sistemas de impermeabilização pode ser reparado quando
apresenta infiltrações, não sendo necessário a sua substituição total;
Devemos sempre buscar a CAUSA que originou a infiltração e não
trabalhar a CONSEQUÊNCIA como medida paliativa;
Grande parte das infiltrações têm suas origens nas mais diversas causas
que podem ser: trinca de fachada, caixa de luz, movimentações térmicas e
reformas de modo geral etc.;
Dependendo do sistema de impermeabilização, este pode ultrapassar mais
de 20 anos, enquanto a sua vida útil estiver atendendo à performance;
Qualquer conserto da impermeabilização apresenta um custo muito alto,
devido ao fato de ter que se remover tudo até a laje, sem contar com o
desconforto de conviver com a reforma durante a sua execução.

Elaborado por:

Analisado por:

Professor :

Marcelo Gandra Falcone

Alessandra Aparecida Vieira

Marcelo Gandra Falcone

QUANDO IMPRESSO CONSIDERAR PIRATARIA - CÓPIA NÃO AUTORIZADA
UNINOVE

Rev. B

Engenharia de Avaliações e Perícias
Manutenção Predial e Avaliação de Máquinas
e Equipamentos

16/07/2011
Folha 158/424

Figura 58 –recomendações de Contratação –SP, PUJADAS, F.Z.A.; GOMIDE, T.L.F.; FAGUNDES, J.C.P. e OUTROS,
Inspeção Predial –Check-Up Predial: Guia da Boa Prevenção. São Paulo: Leud, 2009.

Elaborado por:

Analisado por:

Professor :

Marcelo Gandra Falcone

Alessandra Aparecida Vieira

Marcelo Gandra Falcone

QUANDO IMPRESSO CONSIDERAR PIRATARIA - CÓPIA NÃO AUTORIZADA
UNINOVE

Rev. B

Engenharia de Avaliações e Perícias
Manutenção Predial e Avaliação de Máquinas
e Equipamentos

16/07/2011
Folha 159/424

9.10 Sistema de combate a incêndio

9.10.1 Descrição e finalidade do sistema
São condições exigíveis que as edificações possuam, a fim de que a sua
população possa abandoná-las em caso de incêndio, completamente protegida
e que também permitam o acesso de auxílio externo (Corpo de Bombeiros)
para o combate ao fogo e a retirada das pessoas.
Os objetivos dos Sistemas de Combate a incêndio são:
1) a garantia da segurança à vida das pessoas que se encontrarem no interior
de um edifício, quando da ocorrência de um incêndio;
2) a prevenção da conflagração e propagação do incêndio, envolvendo todo o
edifício;
3) a proteção do conteúdo e a estrutura do edifício;
4) minimizar os danos materiais de um incêndio.
Esses objetivos são alcançados pelo:
1) controle da natureza e da quantidade de materiais combustíveis constituintes
e contidos no edifício;
2) dimensionamento da compartimentação interna, do distanciamento entre
edifícios e da resistência ao fogo dos elementos de compartimentação;
3) dimensionamento da proteção e de resistência ao fogo da estrutura do
edifício;
4) dimensionamento de sistemas de detecção e alarme de incêndio e/ou de
sistemas de chuveiros automáticos de extinção de incêndio e/ou equipamentos
manuais para combate;
5) dimensionamento das rotas de escape e dos dispositivos para controle do
movimento da fumaça.
6) controle das fontes de ignição e riscos de incêndio;
7) acesso para os equipamentos de combate a incêndio;
8) treinamento de pessoal habilitado a combater um princípio de incêndio e
coordenar o abandono seguro da população de um edifício;
9) gerenciamento e manutenção dos sistemas de proteção contra incêndio
instalado;
10) controle dos danos ao meio ambiente decorrente de um incêndio.
Fogo é o produto de uma reação química denominada combustão, que se
caracteriza pelo desprendimento de luz e calor. O fogo tem sido responsável
pela grande ocorrência de catástrofes ao longo dos anos.
Para a extinção do fogo e evitar a sua propagação deve-se realizar a quebra da
reação química denominada combustão, para tanto, temos equipamentos e
medidas de proteções passivas e ativas de segurança contra incêndios.
Elaborado por:

Analisado por:

Professor :

Marcelo Gandra Falcone

Alessandra Aparecida Vieira

Marcelo Gandra Falcone

QUANDO IMPRESSO CONSIDERAR PIRATARIA - CÓPIA NÃO AUTORIZADA
UNINOVE

Rev. B

Engenharia de Avaliações e Perícias
Manutenção Predial e Avaliação de Máquinas
e Equipamentos

16/07/2011
Folha 160/424

As proteções ativas são aquelas que são acionadas de forma manual ou
automática, como extintores, hidrantes e mangotinhos, chuveiros automáticos
(sprinklers), detecção e alarme, sinalização e iluminação de emergência.
As proteções passivas são aquelas incorporadas ao sistema construtivo, sendo
funcionais durante toda a existência normal do edifício, e que, em situação de
incêndio, dificultam o crescimento e a propagação do fogo e facilitam a fuga
dos ocupantes ou então o ingresso das ações de combate, pelo Corpo de
Bombeiros ou Brigada de Incêndio.
Essas medidas estão vinculadas a diversos elementos, destacando-se:
compartimentação horizontal e vertical, saídas de emergência, resistência dos
elementos estruturais, resistência da envoltória do edifício, distanciamento
seguro entre edifícios e sistema de controle de fumaça natural.
9.10.2 Descrição dos Subsistemas e itens a verificar
A inspeção deverá ser restrita aos seguintes itens: extintores; hidrantes; saídas
de emergência; brigadas de incêndio (ABNT NBR 14276); sinalização de
emergência, rota de fuga; e outros, em função da especificidade da construção
conforme anexo 17 do Decreto 32.329/92.
9.10.3 Edificação Lotação / Saídas / Rotas de Fuga (Enfoque "Larguras"):
Principais falhas : As falhas mais comuns encontradas nas saídas de
emergência são:
 Portas obstruídas por vasos ornamentais, móveis, materiais diversos e
principalmente por lixeiras que são instaladas nas antecâmaras;
 Portas corta-fogo em mau estado de funcionamento das fechaduras;
 Portas corta-fogo abertas e travadas com objetos;
 Portas corta-fogo sem o selo da ABNT – lembrar que muitas vezes o selo
está coberto por tinta;
 Iluminação de emergência autônoma com baterias vencidas e/ou
descarregadas;
 Circuito da iluminação de emergência que é alimentado por gerador de
energia elétrica, sem combustível que aciona o gerador.

Elaborado por:

Analisado por:

Professor :

Marcelo Gandra Falcone

Alessandra Aparecida Vieira

Marcelo Gandra Falcone

QUANDO IMPRESSO CONSIDERAR PIRATARIA - CÓPIA NÃO AUTORIZADA
UNINOVE

Rev. B

Engenharia de Avaliações e Perícias
Manutenção Predial e Avaliação de Máquinas
e Equipamentos

16/07/2011
Folha 161/424

Principais anomalias
As anomalias mais comuns encontradas nas saídas de emergência são:
 Portas que se abrem para o interior do edifício, onde o sentido correto é
abrir para a saída da edificação;
 Saída de emergência sem saída;
 Saídas que na levam a uma área de descarga segura;
 Saídas com menos de 1,20 m de largura, principalmente nas escadarias e
antecâmaras;
 Escadas enclausuradas à prova de fumaça sem ventilação exaustora que
resista a quatro horas ininterruptamente;
 Portas corta-fogo em mau estado de funcionamento das fechaduras;
 Portas corta-fogo sem o selo da ABNT – lembrar que muitas vezes o selo
está coberto por tinta;
 Iluminação de emergência autônoma por bactérias vencidas e/ou
descarregadas;
 Iluminação de emergência por gerador, este sem combustível.

Figura 59 – Ventilação - IBAPE –SP, PUJADAS, F.Z.A.; GOMIDE, T.L.F.; FAGUNDES, J.C.P. e OUTROS, Inspeção Predial
–Check-Up Predial: Guia da Boa Prevenção. São Paulo: Leud, 2009.

As portas das rotas de saída e aquelas das salas com capacidade acima de 50
pessoas e em comunicação com os acessos e descargas devem abrir no
sentido do trânsito de saída

Elaborado por:

Analisado por:

Professor :

Marcelo Gandra Falcone

Alessandra Aparecida Vieira

Marcelo Gandra Falcone

QUANDO IMPRESSO CONSIDERAR PIRATARIA - CÓPIA NÃO AUTORIZADA
UNINOVE

Rev. B

Engenharia de Avaliações e Perícias
Manutenção Predial e Avaliação de Máquinas
e Equipamentos

16/07/2011
Folha 162/424

Recomendações e orientações técnicas
Para um melhor controle e segurança:
 Toda saída de emergência deve ser inspecionada rotineiramente, ou mudar
o layout;
 Toda iluminação e sinalização devem ser inspecionadas e testadas, de
acordo com recomendações dos fabricantes e/ou utilização;
 O conjunto porta-fogo e o piso ao redor não deve ser lavado com água ou
qualquer produto químico; a limpeza deve ser feita com pano úmido em
água e em seguida utilizado um pano seco para a remoção, a fim de
preservar o aço e a pintura que compõem o conjunto;
 Todas as portas corta-fogo devem ser inspecionadas, aplicando óleo
lubrificante nas dobradiças e maçanetas para garantia o seu perfeito
funcionamento;
 O sistema de trava eletrônica deve ser revisado rotineiramente.
Itens a verificar:


Lotação das Edificações:


Pela NBR 9077

 A população é calculada na proporção de 0,50 metros linear por pessoa,
quando sentada, ou por cadeira móvel existente.
 A densidade para público sentado, para fins de cálculo é de 4 pessoas
por metro quadrado (1 pessoa/ 0,25 m²).
 No caso de camarotes e outros setores que não possuam cadeiras fixas
a densidade para fins de cálculo é de 4 pessoas por m² da área bruta.


Pela IT 12

 A população é calculada na proporção de 0,50 metros linear por pessoa,
quando sentada, ou por cadeira móvel existente.
 A densidade para público sentado, para fins de cálculo é de 4 pessoas
por metro quadrado (1 pessoa/ 0,25 m²).
 No caso de camarotes e outros setores que não possuam cadeiras fixas
a densidade para fins de cálculo é de 4 pessoas por m² da área bruta.
Pelo COE : Tabela para cálculo de Lotação:
Setor para público em pé: 0,40
Setor para público sentado: 1,00
Atividades não específicas ou administrativas: 7,00

Elaborado por:

Analisado por:

Professor :

Marcelo Gandra Falcone

Alessandra Aparecida Vieira

Marcelo Gandra Falcone

QUANDO IMPRESSO CONSIDERAR PIRATARIA - CÓPIA NÃO AUTORIZADA
UNINOVE

Rev. B

Engenharia de Avaliações e Perícias
Manutenção Predial e Avaliação de Máquinas
e Equipamentos

16/07/2011
Folha 163/424

Elaborado por:

Analisado por:

Professor :

Marcelo Gandra Falcone

Alessandra Aparecida Vieira

Marcelo Gandra Falcone

QUANDO IMPRESSO CONSIDERAR PIRATARIA - CÓPIA NÃO AUTORIZADA
UNINOVE

Engenharia de Avaliações e Perícias
Manutenção Predial e Avaliação de Máquinas
e Equipamentos



Rev. B
16/07/2011
Folha 164/424

Saídas com dimensionamento de acordo com Anexo 17 da Lei 11.228/1992
e Decreto 32.329, ou NBR 9077 ou IT 12 do Corpo de Bombeiros ou
Portaria 014/Sehab-G/96.

Para a NBR 9077 diz para unidade de passagem = 0,55metros :

Portaria 014 para Locais Abertos temos : população C= 2,5 pessoas/m² e o
tempo de escoamento T = 6 mins e V = 20m/min e N dado em metros direto.
N = P / (C x T x V)
Para a IT 12 temos: para os bombeiros a população de pé pode ser de até C
= 4 pessoas / m² e o tempo de escoamento T = 12 min para uma velocidade V
= 20m/min.
N = P / (C x T x V)
Para Locais fechados e cobertos usar o COE: Os espaços de circulação
coletiva, ou vias de escoamento, serão constituídos por módulos de 0,30m
(trinta centímetros) adequados ao escoamento de 30 (trinta) pessoas por
módulo, respeitada a largura mínima de 1,20m (um metro e vinte centímetros)
para os espaços que vierem
ser construídos. De acordo com suas
características e dimensionamento, os espaços de circulação existentes serão
adequados ao escoamento da população conforme tabela seguinte:

Elaborado por:

Analisado por:

Professor :

Marcelo Gandra Falcone

Alessandra Aparecida Vieira

Marcelo Gandra Falcone

QUANDO IMPRESSO CONSIDERAR PIRATARIA - CÓPIA NÃO AUTORIZADA
UNINOVE

Rev. B

Engenharia de Avaliações e Perícias
Manutenção Predial e Avaliação de Máquinas
e Equipamentos

16/07/2011
Folha 165/424

Cada via de escoamento horizontal de um andar da edificação – corredor será
dimensionada em razão da contribuição da lotação corrigida "Lc" dos
ambientes e setores do andar, não podendo haver diminuição de sua largura
no sentido da saída. A via de escoamento vertical, escada ou rampa, será
dimensionada em razão do andar que detiver a maior lotação corrigida "Lc",
apurada dentre o conjunto de andares que venham a utilizar esta via de
escoamento. A via de escoamento vertical poderá ter dimensão variável,
proporcional à lotação corrigida "Lc" de cada andar desde que, no sentido de
saída, não haja diminuição de sua largura. Para as rampas descendentes no
sentido do escoamento, poderá haver decréscimo de 2% (dois por cento) da
largura calculada e para as ascendentes no sentido do escoamento, deverá
haver acréscimo de 10% (dez por cento) da largura calculada.



As escadas

Em qualquer edificação, os pavimentos sem saída em nível para o espaço livre
exterior deverão ser dotados de escadas, enclausuradas ou não, as quais
devem:
a) quando enclausuradas, ser constituídas com material incombustível;
b) quando não enclausuradas, além da incombustibilidade, oferecer nos
elementos estruturais resistência ao fogo conforme Instrução Técnica CB-08
(Segurança Estrutural na Edificação);
c) ter os pisos dos degraus e patamares revestidos com materiais resistentes à
propagação superficial de chama, isto é, com índice “A” da ABNT NBR 9442;
Elaborado por:

Analisado por:

Professor :

Marcelo Gandra Falcone

Alessandra Aparecida Vieira

Marcelo Gandra Falcone

QUANDO IMPRESSO CONSIDERAR PIRATARIA - CÓPIA NÃO AUTORIZADA
UNINOVE

Rev. B

Engenharia de Avaliações e Perícias
Manutenção Predial e Avaliação de Máquinas
e Equipamentos

16/07/2011
Folha 166/424

e) ser dotadas de corrimãos;
f) atender a todos os pavimentos, acima e abaixo da descarga, mas terminando
obrigatoriamente no piso desta, não podendo ter comunicação direta com outro
lanço na mesma prumada;
g) ter os pisos com condições antiderrapantes, e que permaneçam
antiderrapantes com o uso;

Dimensionamento de degraus e patamares. Os degraus devem:
a) ter altura h (ver figura 3) compreendida entre 16,0 cm e 18,0 cm, com
tolerância de 0,05 cm;
b) ter largura b (ver figura 3) dimensionada pela fórmula de Blondel:
63 cm <= (2h+b) >= 64 cm
c) ser balanceados quando o lanço da escada for curvo (escada em leque) ou
em espiral, quando se tratar de escadas não destinadas a saídas de
emergências;
d) ter, num mesmo lanço, larguras e alturas iguais e, em lanços sucessivos de
uma mesma escada, diferenças entre as alturas de degraus de, no máximo, 5
mm;
e) ter bocel (nariz) de 1,5 cm, no mínimo, ou, quando este inexistir, balanço da
quina do degrau sobre o imediatamente inferior com este mesmo valor mínimo
(ver figura 3).

Figura 59 –Escadas- IBAPE –SP, PUJADAS, F.Z.A.; GOMIDE, T.L.F.; FAGUNDES, J.C.P. e OUTROS, Inspeção Predial –
Check-Up Predial: Guia da Boa Prevenção. São Paulo: Leud, 2009.
Elaborado por:

Analisado por:

Professor :

Marcelo Gandra Falcone

Alessandra Aparecida Vieira

Marcelo Gandra Falcone

QUANDO IMPRESSO CONSIDERAR PIRATARIA - CÓPIA NÃO AUTORIZADA
UNINOVE

Rev. B

Engenharia de Avaliações e Perícias
Manutenção Predial e Avaliação de Máquinas
e Equipamentos

16/07/2011
Folha 167/424

Figura 60 – Escadas- IBAPE –SP, PUJADAS, F.Z.A.; GOMIDE, T.L.F.; FAGUNDES, J.C.P. e OUTROS, Inspeção Predial –
Check-Up Predial: Guia da Boa Prevenção. São Paulo: Leud, 2009.

O lanço mínimo deve ser de três degraus e o lanço máximo, entre dois patamares
consecutivos, não deve ultrapassar 3,70 m de altura.
O comprimento dos patamares deve ser (ver figura 5) :
a) dado pela fórmula: p = (2h + b)n + b
em que o n é um número inteiro (1, 2 ou 3), quando se tratar de escada reta,
medido na direção do trânsito;
b) no mínimo, igual à largura da escada quando há mudança de direção da escada
sem degraus ingrauxidos, não se aplicando neste caso, a fórmula anterior.
Em ambos os lados de vão da porta, deve haver patamares com comprimento
mínimo igual à largura da folha da porta.

Figura 61 –Escadas- IBAPE –SP, PUJADAS, F.Z.A.; GOMIDE, T.L.F.; FAGUNDES, J.C.P. e OUTROS, Inspeção Predial –
Check-Up Predial: Guia da Boa Prevenção. São Paulo: Leud, 2009.
Elaborado por:

Analisado por:

Professor :

Marcelo Gandra Falcone

Alessandra Aparecida Vieira

Marcelo Gandra Falcone

QUANDO IMPRESSO CONSIDERAR PIRATARIA - CÓPIA NÃO AUTORIZADA
UNINOVE

Rev. B

Engenharia de Avaliações e Perícias
Manutenção Predial e Avaliação de Máquinas
e Equipamentos

16/07/2011
Folha 168/424

Figura 62 –Escadas- IBAPE –SP, PUJADAS, F.Z.A.; GOMIDE, T.L.F.; FAGUNDES, J.C.P. e OUTROS, Inspeção Predial –
Check-Up Predial: Guia da Boa Prevenção. São Paulo: Leud, 2009.

Figura 63 –Escadas- IBAPE –SP, PUJADAS, F.Z.A.; GOMIDE, T.L.F.; FAGUNDES, J.C.P. e OUTROS, Inspeção Predial –
Check-Up Predial: Guia da Boa Prevenção. São Paulo: Leud, 2009.
Elaborado por:

Analisado por:

Professor :

Marcelo Gandra Falcone

Alessandra Aparecida Vieira

Marcelo Gandra Falcone

QUANDO IMPRESSO CONSIDERAR PIRATARIA - CÓPIA NÃO AUTORIZADA
UNINOVE

Rev. B

Engenharia de Avaliações e Perícias
Manutenção Predial e Avaliação de Máquinas
e Equipamentos

16/07/2011
Folha 169/424

Figura 64 –Escadas- IBAPE –SP, PUJADAS, F.Z.A.; GOMIDE, T.L.F.; FAGUNDES, J.C.P. e OUTROS, Inspeção Predial –
Check-Up Predial: Guia da Boa Prevenção. São Paulo: Leud, 2009.

Figura 65 –Escadas- IBAPE –SP, PUJADAS, F.Z.A.; GOMIDE, T.L.F.; FAGUNDES, J.C.P. e OUTROS, Inspeção Predial –
Check-Up Predial: Guia da Boa Prevenção. São Paulo: Leud, 2009.
Elaborado por:

Analisado por:

Professor :

Marcelo Gandra Falcone

Alessandra Aparecida Vieira

Marcelo Gandra Falcone

QUANDO IMPRESSO CONSIDERAR PIRATARIA - CÓPIA NÃO AUTORIZADA
UNINOVE

Engenharia de Avaliações e Perícias
Manutenção Predial e Avaliação de Máquinas
e Equipamentos



Rev. B
16/07/2011
Folha 170/424

devem ser guarnecidas por corrimãos, conforme a NBR 9.077. As escadas
deverão dispor de corrimão, instalado entre 0,80 m ( oitenta centímetros ) e
1,00 m ( um metro ) de altura conforme as seguintes especificações:
a) apenas de um lado, para escada com largura inferior a 1,20 m ( um
metro e vinte centímetros);
b) de ambos os lados, para escada com largura igual ou superior a 1,20
m ( um metro e vinte centímetros );
c) intermediário quando a largura for igual ou superior a 2,40 m ( dois
metros e quarenta centímetros ) de forma a garantir largura mínima de
1,20 m ( um metro e vinte centímetros ) para cada lance;



As escadas privativas e as escadas coletivas em curva não serão
consideradas para o cálculo do escoamento da população.



As escadas coletivas deverão ser descontínuas a partir do pavimento
correspondente à soleira de ingresso da edificação, de forma a orientar o
usuário ao exterior.



As edificações devem estar providas de Guarda-Corpos conforme NBR
14718 e Corrimãos conforme NBR 9050/04:

Guarda-corpos e balaustradas
Toda saída de emergência, corredores, balcões, terraços, mezaninos, galerias,
patamares, escadas, rampas e outros, deve ser protegida de ambos os lados
por paredes ou guardas (guarda-corpos) continuas, sempre que houver
qualquer desnível maior de 19 cm, para evitar quedas.
A altura das guardas, internamente, deve ser, no mínimo, de 1,05 m ao longo
dos patamares, corredores, mezaninos, podendo ser reduzida para até 92cm
nas escadas internas, quando medida verticalmente do topo da guarda a uma
linha que una as pontas dos bocéis ou quinas dos degraus.
A altura das guardas em escadas externas, de seus patamares, de balcões e
assemelhados, deve ser de, no mínimo, 1,30 m, medido como especificado em
Corrimãos
Os corrimãos deverão ser adotados em ambos os lados das escadas ou
rampas, devendo estar situados entre 80 cm e 92 cm acima do nível do piso,
sendo em escadas, esta medida tomada verticalmente da forma especificada
em Figura 10:
Elaborado por:

Analisado por:

Professor :

Marcelo Gandra Falcone

Alessandra Aparecida Vieira

Marcelo Gandra Falcone

QUANDO IMPRESSO CONSIDERAR PIRATARIA - CÓPIA NÃO AUTORIZADA
UNINOVE

Rev. B

Engenharia de Avaliações e Perícias
Manutenção Predial e Avaliação de Máquinas
e Equipamentos

16/07/2011
Folha 171/424

Figura 66 –Escadas- IBAPE –SP, PUJADAS, F.Z.A.; GOMIDE, T.L.F.; FAGUNDES, J.C.P. e OUTROS, Inspeção Predial –
Check-Up Predial: Guia da Boa Prevenção. São Paulo: Leud, 2009.

Uma escada pode ter corrimãos em diversas alturas, além do corrimão
principal na altura normal exigida; em escolas, jardins-de-infância e
assemelhados, se for o caso, deve haver corrimãos nas alturas indicadas para
os respectivos usuários, além do corrimão principal.
Os corrimãos devem ser projetados de forma a poderem ser agarrados fácil e
confortavelmente, permitindo um contínuo deslocamento da mão ao longo de
toda a sua extensão, sem encontrar quaisquer obstruções, arestas ou soluções
de continuidade. No caso de secção circular, seu diâmetro varia entre 38 mm e
65 mm (ver figura 11).
Os corrimãos devem estar afastados 40 mm no mínimo, das paredes ou
guardas às quais forem fixados.
Não são aceitáveis, em saídas de emergência, corrimãos constituídos por
elementos com arestas vivas, tábuas largas e outros (ver figura 11).

Figura 67 –Escadas- IBAPE –SP, PUJADAS, F.Z.A.; GOMIDE, T.L.F.; FAGUNDES, J.C.P. e OUTROS, Inspeção Predial –
Check-Up Predial: Guia da Boa Prevenção. São Paulo: Leud, 2009.
Elaborado por:
Analisado por:
Professor :
Marcelo Gandra Falcone

Alessandra Aparecida Vieira

Marcelo Gandra Falcone

QUANDO IMPRESSO CONSIDERAR PIRATARIA - CÓPIA NÃO AUTORIZADA
UNINOVE

Engenharia de Avaliações e Perícias
Manutenção Predial e Avaliação de Máquinas
e Equipamentos



Rev. B
16/07/2011
Folha 172/424

Rampas:

O uso de rampas é obrigatório nos seguintes casos:
a) para unir dois pavimentos de diferentes níveis em acesso a áreas de refúgio;
b) na descarga e acesso de elevadores de emergência;
c) sempre que a altura a vencer for inferior a 0,48 m, já que são vedados
lanços de escadas com menos de três degraus;
d) quando a altura a ser vencida não permitir o dimensionamento equilibrado
dos degraus de uma escada;
e) para unir o nível externo ao nível do saguão térreo das edificações em que
houver usuários de cadeiras de rodas (ver NBR-9050).











As rampas não podem terminar em degraus ou soleiras, devendo ser
precedidas e sucedidas sempre por patamares planos.
Os patamares das rampas devem ser sempre em nível, tendo comprimento
mínimo de 1,20 m, medidos na direção do trânsito, sendo obrigatórios
sempre que houver mudança de direção ou quando a altura a ser vencida
ultrapassar 3,70m.
As rampas podem suceder um lanço de escada, no sentido descendente de
saída, mas não podem precedê-lo.
Não é permitida a colocação de portas em rampas; estas devem estar
situadas sempre em patamares planos, com largura não-inferior à da folha
da porta de cada lado do vão.
O piso das rampas deve ser antiderrapante.
As rampas terão inclinação máxima de 10 % ( dez por cento ) quando forem
meio de escoamento vertical da edificação, sendo que sempre que a
inclinação exceder a 6 % ( seis por cento ) o piso deverá ser revestido com
material anti-derrapante.
Para acesso de pessoas portadoras de deficiências físicas, o imóvel deverá
ser obrigatoriamente, dotado de rampa com largura mínima de 1,20 m (um
metro e vinte centímetros) e a inclinação não pode exceder 8,33% para
vencer desnível entre o logradouro público ou área externa e o piso
correspondente à soleira de ingresso às edificações destinadas a:
o local de reunião com mais de 100 (cem pessoas);
o qualquer outro uso com mais de 600 (seiscentas) pessoas.



Pela NBR 9077, a largura mínima de uma rampa para ser considerada
saída de emergência é de 1,65m, correspondente a três unidades de
passagem de 55 cm e 2,20 m de largura, correspondente a quatro unidades
de passagem de 55 cm, para as rampas, acessos às rampas (corredores e
passagens) e descarga das rampas.

Elaborado por:

Analisado por:

Professor :

Marcelo Gandra Falcone

Alessandra Aparecida Vieira

Marcelo Gandra Falcone

QUANDO IMPRESSO CONSIDERAR PIRATARIA - CÓPIA NÃO AUTORIZADA
UNINOVE

Engenharia de Avaliações e Perícias
Manutenção Predial e Avaliação de Máquinas
e Equipamentos



Rev. B
16/07/2011
Folha 173/424

PORTAS

As portas das rotas de saída e aquelas das salas com capacidade acima de 50
pessoas e em comunicação com os acessos e descargas devem abrir no
sentido do trânsito de saída (ver figura 3333).

As larguras, vão livre ou “luz” das portas, comuns ou corta-fogo, utilizadas nas
rotas de saída, deve ser dimensionada como estabelecido em 5.4, admitindo se
uma redução no vão de luz, isto é, no livre, das portas em até 75 mm de cada
(golas), para o contramarco e alizares. As portas devem ter as seguintes
dimensões mínimas de luz:
a) 80 cm, valendo por uma unidade de passagem;
b) 90 cm, valendo por duas unidades de passagem;
c) 1,50 m, em duas folhas, valendo por três unidades de passagem.
Notas:
a) Porta com dimensão maior ou igual a 2,20 m, exige-se coluna central.
b) As portas das antecâmaras das escadas à prova de fumaça e das paredes
corta-fogo devem ser do tipo corta-fogo (PCF), obedecendo a NBR 11742, no
que lhe for aplicável.
c) As portas das antecâmaras, escadas e outros devem ser providas de
dispositivos mecânicos e automáticos, de modo a permanecerem fechadas,
mas destrancadas, no sentido do fluxo de saída, sendo admissível que se
mantenham abertas, desde que disponham de dispositivo de fechamento,
quando necessário.
d) Se as portas dividem corredores que constituem rotas de saída, devem:
 ter condições de reter a fumaça e ser providas de visor transparente de
área mínima de 0,07 m², com altura mínima de 25 cm;
 abrir no sentido do fluxo de saída;
Elaborado por:

Analisado por:

Professor :

Marcelo Gandra Falcone

Alessandra Aparecida Vieira

Marcelo Gandra Falcone

QUANDO IMPRESSO CONSIDERAR PIRATARIA - CÓPIA NÃO AUTORIZADA
UNINOVE

Engenharia de Avaliações e Perícias
Manutenção Predial e Avaliação de Máquinas
e Equipamentos




Rev. B
16/07/2011
Folha 174/424

abrir nos dois sentidos, caso o corredor possibilite saída nos dois sentidos.
Em salas com capacidade acima de 100 pessoas e nas rotas de saída dos
locais de reunião com capacidade acima de 100 pessoas, as portas de
comunicação com os acessos, escadas e descarga devem ser dotadas de
ferragem do tipo antipânico, conforme NBR 11785.

Portas "Corta Fogo" e Barras "Anti-Pânico":
 Portas "Corta Fogo” NBR 11742 e Barras Anti-Pânico NBR 11785.
 Verificar regulagem das molas e dobradiças
 Devem ser mantidas desobstruídas e abertas.
 Erros comuns:
a) Portas corta-fogo instaladas acima de 1cm da soleira da porta
permitindo que volume maior de fumaça a atravesse;
b) Portas corta-fogo mantidas abertas por calços, vasos ou tijolos;
c) Portas corta-fogo que não fecham automaticamente com a passagem
das pessoas;
d) Portas corta-fogo sem patamares anterior e posterior a ela;
e) Portas corta-fogo sem placa de marca de conformidade;
f) Venezianas de entrada e saída de ar e fumaça dos dutos de ventilação
com elementos que não garantem a área mínima de ventilação de
0,84m²;
g) Instalação de fiação de antenas, prumadas elétricas e até tubulações de
gás;
h) Obstrução por vasos, sacos de lixo, materiais de construção, móveis,
etc;
i) Fixação de corrimãos com buchas e parafusos nas paredes, que não
garantem um mínimo de resistência ao arrancamento;
j) Escada de emergência que não termina no térreo (descarga), mas
continua até o subsolo;
k) Corrosão na parte inferior da porta, furando a mesma ou criando
abertura superior a 1cm.
RECOMENDAÇÕES:


O conjunto porta corta fogo e o piso ao redor não devem ser lavados com
água ou qualquer produto químico, a limpeza deve ser feita com pano
úmido em água e em seguida utilizado um pano seco para a remoção, a fim
de preservar o aço e a pintura que compõe o conjunto.



Todas as PCF – Portas corta fogo deve ser inspecionada a cada pelo
menos 3 meses, aplicando óleo lubrificante nas dobradiças e maçanetas
para garantir o seu perfeito funcionamento.



Verficação diária de obstrução e das condições de fechamento (manter
fechadas)

Elaborado por:

Analisado por:

Professor :

Marcelo Gandra Falcone

Alessandra Aparecida Vieira

Marcelo Gandra Falcone

QUANDO IMPRESSO CONSIDERAR PIRATARIA - CÓPIA NÃO AUTORIZADA
UNINOVE

Engenharia de Avaliações e Perícias
Manutenção Predial e Avaliação de Máquinas
e Equipamentos













Rev. B
16/07/2011
Folha 175/424

Sistema de Isolamento de Risco:

Verificar isolamento do pavimento térreo e do subsolos. E entre pavimentos e
estacionamentos.
Serão toleradas instalações elétricas impróprias o espaço protegido, desde
que satisfeitas as exigências da NBR 5410, assegurando proteção
adequada.
As escadas protegidas, em todos os pavimentos exceto no(s) pavimento(s)
de saída, somente poderão ter comunicação com outros recintos interiores
à edificação através de vestíbulos/antecâmaras também protegidos.
Os vestíbulos/antecâmaras deverão ter suas dimensões atendendo à
proporção de 1:1,5, sendo a menor dimensão maior ou igual à largura da
escada.
Os vestíbulos/antecâmaras deverão ter ventilação obrigatória, de modo a
protegê-los da entrada de gases e fumaça, através de uma das seguintes
condições:
a) ventilação natural, através de abertura voltada para o exterior, com
área mínima igual a 50% (cinqüenta por cento) da superfície de seu
lado maior, distanciada no mínimo 5,00m (cinco metros) de outra
abertura da mesma edificação;
b) ventilação forçada artificial, com funcionamento automático no caso
de falta de energia, dimensionada de acordo com as N.T.O.;
c) ventilação natural, através de abertura com o mínimo de 0,70m2
(setenta decímetros quadrados) para duto de ventilação, que deverá
ter:
d) área mínima "Av" obtida pela fórmula: Av = 0,03m x Hd, respeitada a
área mínima de 1,00m2 (um metro quadrado) onde "Hd" é a altura
total do duto, não sendo admitido o escalonamento; seção
transversal capaz de conter um círculo de 0,70m (setenta
centímetros) de diâmetro;
e) tomada de ar exterior em sua base, diretamente para andar aberto
ou para duto horizontal com dimensões não inferiores à metade das
exigidas para o duto vertical, e saída de ar situada 1,00m (um metro)
no mínimo acima da cobertura, contígua ao duto;
f) paredes resistentes a duas horas de fogo (RF-120).
São considerados como espaço de circulação protegido, os seguintes tipos
de escadas:
a) Escada aberta para o exterior, limitada à altura máxima de 27,00m
(vinte e sete metros) sem obrigatoriedade de comunicação através
de vestíbulo/antecâmara protegidos, desde que: possua ventilação
natural através de abertura em, pelo menos, 50% (cinqüenta por
cento) de seu perímetro, com altura igual ou superior à metade do
seu pé-direito; as aberturas estejam distanciadas, no mínimo, 5,00m
(cinco metros) de outra abertura da mesma edificação; a face aberta
da escada esteja distanciada, no mínimo, 5,00m (cinco metros) de

Elaborado por:

Analisado por:

Professor :

Marcelo Gandra Falcone

Alessandra Aparecida Vieira

Marcelo Gandra Falcone

QUANDO IMPRESSO CONSIDERAR PIRATARIA - CÓPIA NÃO AUTORIZADA
UNINOVE

Engenharia de Avaliações e Perícias
Manutenção Predial e Avaliação de Máquinas
e Equipamentos

b)

c)
d)

e)

Rev. B
16/07/2011
Folha 176/424

outra edificação no mesmo lote e 3,00m (três metros) das divisas do
imóvel.
Escada pressurizada, dimensionada de acordo com as NTO,
garantido o seu funcionamento automático no caso de falta de
energia, comunicando-se através
de vestíbulo/antecâmara
protegidos;
Escada Fechada sem iluminação natural, comunicando-se através de
vestíbulo/antecâmara protegidos;
Escada Fechada, com iluminação natural através de abertura para o
exterior com área máxima de 0,50m² (cinqüenta decímetros
quadrados) distanciada, no mínimo, 3,00m (três metros) de outra
abertura da edificação e das divisas do imóvel, comunicando-se
através de vestíbulo/antecâmara protegidos.
Escadas "protegida", "enclausurada" e "à prova de fumaça",
conforme NTO - NBR 9077, de acordo com os limites fixados na
tabela 2 desta Norma.

Obs: As escadas podem ser eventualmente substituídas por:
a) interligação entre blocos no mesmo lote ou entre edificações
vizinhas, por passarela e/ou passadiço protegido,;
b) áreas de refúgio, delimitadas por elementos construtivos resistentes
ao fogo RF-120 (parede e piso) e RF-90 (portas) situadas, no
mínimo, a cada 4 (quatro) andares, com capacidade para abrigar
50% (cinqüenta por cento) da lotação total dos andares superiores,
na proporção de 0,50m² (cinqüenta decímetros quadrados) por
pessoa, interligadas à escada protegida.



A edificação, exceto a de uso residencial, deverá ter seus espaços
compartimentados em Setores de Incêndio, com área menor ou igual a
2.000m² (dois mil metros quadrados) delimitados por elementos RF-120
(parede e piso) e RF-60 (portas); serão subdivididos em subsetores com
área menor ou igual a 500m² (quinhentos metros quadrados) delimitados
por elementos RF-60 (paredes e pisos) e RF-30 (portas) quando
ultrapassarem os limites de altura ou população, estabelecidos de acordo
com sua destinação, conforme os seguintes parâmetros:
a) tratamento de saúde, comércio e educação, com altura superior a
15,00m (quinze metros);
b) locais de reunião, com lotação superior a 700 (setecentas) pessoas;
c) outros, com altura superior a 27,00m (vinte e sete metros).

OBS: A compartimentação prevista neste item poderá ser substituída pela
instalação de chuveiros automáticos em toda a área.
Elaborado por:

Analisado por:

Professor :

Marcelo Gandra Falcone

Alessandra Aparecida Vieira

Marcelo Gandra Falcone

QUANDO IMPRESSO CONSIDERAR PIRATARIA - CÓPIA NÃO AUTORIZADA
UNINOVE

Engenharia de Avaliações e Perícias
Manutenção Predial e Avaliação de Máquinas
e Equipamentos



Rev. B
16/07/2011
Folha 177/424

Plano de emergência

Todo edifício comercial ou residencial deve ter um plano de emergência para
abandono do prédio em caso de incêndio.
Um plano de emergência deve conter:
 Procedimentos do supervisor;
 Procedimentos da brigada de incêndio;
 Procedimentos dos ocupantes do prédio;
 Planta do edifício;
 Localização do equipamento de combate a incêndio;
 Localização das rotas de fuga;
 Ponto de reunião fora do edifício;
 A formação da brigada de incêndio é obrigatória, segundo
determinação do Corpo de Bombeiros;
 Ela deve ser composta por funcionários e usuários voluntários da
edificação, que deverão passar por treinamentos periódicos.
Quando o plano estiver pronto, providenciar:
 Comunicação do conteúdo do plano a todos os ocupantes de edifício;
 Sinalização das instalações (saídas, extintores, hidrantes etc.);
 Treinamento de abandono do edifício; um bombeiro ou profissional
habilitado poderá auxiliar nessa tarefa.









Abandono do prédio em chamas

O abandono de um edifício em chamas deve ser feito pelas escadas,
com calma, sem afobamentos;
Nunca use o elevador para sair de um prédio onde há um incêndio;
Se um incêndio ocorrer em seu escritório ou apartamento, saia
imediatamente. Muitas pessoas morrem por não acreditarem que um
incêndio pode se alastrar com rapidez. Combate?
Se você ficar preso em meio à fumaça, respire pelo nariz, em rápidas
inalações. Se possível, molhe um lenço e utilize-o como máscara
improvisada. Procure rastejar para a saída, pois o ar é sempre melhor
junto ao chão. Se possível, fique perto de uma janela, de onde poderá
chamar por socorro;

Elaborado por:

Analisado por:

Professor :

Marcelo Gandra Falcone

Alessandra Aparecida Vieira

Marcelo Gandra Falcone

QUANDO IMPRESSO CONSIDERAR PIRATARIA - CÓPIA NÃO AUTORIZADA
UNINOVE

Engenharia de Avaliações e Perícias
Manutenção Predial e Avaliação de Máquinas
e Equipamentos
















Rev. B
16/07/2011
Folha 178/424

Use as escadas, nunca o elevador. Um incêndio razoável pode
determinar o corte de energia para os elevadores. Feche todas as portas
que ficarem atrás de você, assim retardará a propagação do fogo;
Se você ficar preso em uma sala cheia de fumaça, fique junto ao piso,
onde o ar é sempre melhor. Se possível, fique perto de uma janela, de
onde poderá chamar por socorro. Repetitivo eliminar;
Toque a porta com o dorso da sua mão. Se estiver quente, não abra. Se
estiver fria, faça este teste: abra vagarosamente e fique atrás da porta,
se sentir calor ou pressão vindo por meio da abertura, mantenha-a
fechada;
Se você não puder sair, mantenha-se atrás de uma porta fechada.
Qualquer porta serve como couraça.Procure um lugar perto de janelas, e
abra-as em cima e embaixo. Calor e fumaça devem sair por cima. Você
poderá respirar pela abertura inferior;
Procure conhecer o equipamento de combate a incêndio para utilizá-lo
com eficiência em caso de emergência;
Um prédio pode lhe dar várias opções de salvamento. Conheça-as
previamente. NÃO salte do prédio. Muitas pessoas morrem sem
imaginar que o socorro pode chegar em poucos minutos;
Se houver pânico na saída principal, mantenha-se afastado da multidão.
Procure outra saída. Uma vez que você tenha conseguido escapar, NÃO
RETORNE;
Chame o Corpo de Bombeiros imediatamente.

9.10.4) Materiais Combustíveis:






O material empregado na decoração dos ambientes e aquele armazenado
em função da própria utilização da edificação, constituirão fator agravante
de risco se obstruírem os espaços de circulação ou reduzirem o fluxo de
pessoas. Ver também Decreto estadual 46.076 e NR 8
Ficam classificados os principais materiais comumente utilizados nas
edificações, conforme dispõe o item 12.5.3 do COE, nas classes I, II, III e
IV, de acordo com a listagem da Seção 12.E, do ANEXO 12 do Decreto
32.329/92.
Para formulação das exigências relativas à segurança de uso admitir-se-ão
as seguintes equivalências entre quantidades, definidas em peso, de
materiais incluídos nas diferentes classes: 1kg da classe III, eqüivale a 10kg
da classe II que eqüivale a 100kg da classe I.

Elaborado por:

Analisado por:

Professor :

Marcelo Gandra Falcone

Alessandra Aparecida Vieira

Marcelo Gandra Falcone

QUANDO IMPRESSO CONSIDERAR PIRATARIA - CÓPIA NÃO AUTORIZADA
UNINOVE

Rev. B

Engenharia de Avaliações e Perícias
Manutenção Predial e Avaliação de Máquinas
e Equipamentos

16/07/2011
Folha 179/424

9.10.5) Extintores:
Descrição e finalidade do sistema:
Considerado um dos principais agentes extintores, são aparelhos de
acionamento manual, destinados a combater princípios de incêndio.

Itens de Verificação







Verificar existência, instalação carga e selos de validade.
Caso possível verificar adequação / inadequação pelo selo de indicação
constante no cilindro. Os extintores de incêndio devem ser apropriados para
o local a ser protegido
Cada pavimento deve possuir, no mínimo, dois extintores, sendo um de
água pressurizada e outro de pó químico seco ou gás carbônico. É
permitida a instalação de duas unidades extintoras iguais de Pó ABC.
Extintores obstruídos por qualquer material.

Elaborado por:

Analisado por:

Professor :

Marcelo Gandra Falcone

Alessandra Aparecida Vieira

Marcelo Gandra Falcone

QUANDO IMPRESSO CONSIDERAR PIRATARIA - CÓPIA NÃO AUTORIZADA
UNINOVE

Engenharia de Avaliações e Perícias
Manutenção Predial e Avaliação de Máquinas
e Equipamentos













Rev. B
16/07/2011
Folha 180/424

Extintores sem o selo do INMETRO.
Extintores sem o selo de recarga/ manutenção dentro das especificações da
NBR 12962.
Extintores sem a indicação de classe a que se emprega.
Extintores sem sinalização, inclusive aqueles que estão em pilares.
O acesso aos extintores não está obstruído.
Os manômetros indicam pressurização (faixa verde ou amarela).
O aparelho não apresenta vazamento.
Os bicos e as válvulas da tampa estão desentupidos.
Extintores instalados acima da altura permitida em norma de 1,60 m.
Extintores de modo a atender decreto estadual do corpo de bombeiros:

Informações técnicas conforme IT 21 do Corpo de Bombeiros:
Classe de extintores:
-Extintores de incêndio CLASSE A - ensaio de fogo em engradado de madeira
-Extintores de incêndio CLASSE B - ensaio de fogo em líquido inflamável
-Extintores de incêndio CLASSE C - ensaio de fogo em envolvendo instalações
elétricas.
Tipos de extintores:
a) Carga d’água – Classe A
b) Carga de espuma mecânica – Classe A/B
c) Carga de Dióxido de Carbono (CO2) – B/C
d) Carga de Pó BC – B/C
e) Carga de Pó ABC – A/B/C
f) Carga de compostos halogenados – B/C.
Área de proteção máxima por unidade extintora:
a) Risco baixo: 500 m2
b) Risco médio: 250 m2
c) Risco alto: 150 m2
Distancia. O operador não deve percorrer mais que:
a) Risco baixo: 25 m
b) Risco médio: 20 m
c) Risco alto: 15 m

RECOMENDAÇÕES:
 Leve qualquer irregularidade ao conhecimento de um responsável, para que
a situação seja rapidamente sanada.
 A recarga do extintor deve ser feita:
o Imediatamente após o uso.
o Caso ele esteja despressurizado (manômetro na faixa vermelha).
o Após ele ser submetido a teste hidrostático.
Elaborado por:

Analisado por:

Professor :

Marcelo Gandra Falcone

Alessandra Aparecida Vieira

Marcelo Gandra Falcone

QUANDO IMPRESSO CONSIDERAR PIRATARIA - CÓPIA NÃO AUTORIZADA
UNINOVE

Rev. B

Engenharia de Avaliações e Perícias
Manutenção Predial e Avaliação de Máquinas
e Equipamentos

16/07/2011
Folha 181/424

o Se o material estiver empedrado.


Mesmo que o extintor não tenha sido usado, a recarga deve ser feita:
o Após um ano – tipo espuma.
o Após três anos – tipo pó químico seco e água pressurizada.
o Extintores de água pressurizada devem ser recarregados a pelo
menos cada 5 anos ou utilização.
o Semestralmente – se houver diferença de peso que exceda 5%, tipo
pó químico seco e água pressurizada; 10%, tipo CO2.





Esvazie os extintores antes de enviá-los para recarga.
Programe a recarga de forma a não deixar os locais desprotegidos.
A época de recarga deve ser aproveitada para o treinamento das equipes
de emergência.
Devem ser recarregados os extintores em que forem constatados
vazamentos, diminuição de carga ou pressão e vencimento de carga.





O Corpo de Bombeiros exige uma inspeção anual de todos os
extintores, além de testes hidrostáticos a cada cinco anos, por firma
habilitada.

Figura 68 –Extintores - IBAPE –SP, PUJADAS, F.Z.A.; GOMIDE, T.L.F.; FAGUNDES, J.C.P. e OUTROS, Inspeção Predial –
Check-Up Predial: Guia da Boa Prevenção. São Paulo: Leud, 2009.
Elaborado por:

Analisado por:

Professor :

Marcelo Gandra Falcone

Alessandra Aparecida Vieira

Marcelo Gandra Falcone

QUANDO IMPRESSO CONSIDERAR PIRATARIA - CÓPIA NÃO AUTORIZADA
UNINOVE

Rev. B

Engenharia de Avaliações e Perícias
Manutenção Predial e Avaliação de Máquinas
e Equipamentos

16/07/2011
Folha 182/424

Figura 69 –Uso de Extintores – Cartilha do CONTRU.

Elaborado por:

Analisado por:

Professor :

Marcelo Gandra Falcone

Alessandra Aparecida Vieira

Marcelo Gandra Falcone

QUANDO IMPRESSO CONSIDERAR PIRATARIA - CÓPIA NÃO AUTORIZADA
UNINOVE

Rev. B

Engenharia de Avaliações e Perícias
Manutenção Predial e Avaliação de Máquinas
e Equipamentos

16/07/2011
Folha 183/424

9.10.5) Sistema de Hidrantes e Mangotes:

Descrição e finalidade do sistema
O sistema hidráulico de hidrantes é um tipo de proteção instalado em edifícios,
destinado ao combate de incêndios. É composto de um reservatório de
incêndio, bomba de recalque, tubulação, abrigo de mangueira e registro de
recalque.

Figura 70 – Hidrantes e Mangotinhos – Cartilha do Contru.

Principais falhas
As falhas mais comuns encontradas em hidrantes são:












A falta de conservação e sinalização das bombas de incêndio;
Dispositivos de alarme e comando das bombas quebradas e/ou em mau
estado de conservação;
Mau estado de conservação das caixas de hidrantes, principalmente a
abertura das portas, pois é comum estarem emperradas pela oxidação ou
camada grossa de pintura;
Mangueiras dos hidrantes enroladas inadequadamente, sem esguicho e
chave de aperto (Falta de Chave Stortz);
Caixas de hidrantes sem os vidros de visualização e proteção das
mangueiras;
Mangueiras furadas ou cortadas;
Falta de mangueiras;
Registro emperrado.
Deve estar presente em construções com mais de 750 m² ou 12
metros de altura
Os abrigos podem ser construídos de materiais metálicos, de
madeira, de fibra, ou de vidro, podendo ser pintados em qualquer
cor, desde que sinalizados com a palavra “ HIDRANTE”, além da
sinalização dos equipamentos de proteção contra incêndios,
constantes na IT n. 20 – “Sinalização de Emergência”.

Elaborado por:

Analisado por:

Professor :

Marcelo Gandra Falcone

Alessandra Aparecida Vieira

Marcelo Gandra Falcone

QUANDO IMPRESSO CONSIDERAR PIRATARIA - CÓPIA NÃO AUTORIZADA
UNINOVE

Engenharia de Avaliações e Perícias
Manutenção Predial e Avaliação de Máquinas
e Equipamentos











Rev. B
16/07/2011
Folha 184/424

Fica isenta a instalação de hidrantes ou mangotinhos em
edículas, mezaninos, escritórios em andar superior, porão e subsolo de até 200 m2 desde que o caminhamento de apenas uma
mangueira de incêndio do hidrante ou mangotinho do pavimento
mais próximo assegura sua proteção e o acesso aos locais
citados não seja através de escadas enclausuradas.
Fica isenta a instalação de hidrante ou de mangotinhos em
zeladoria, casas de máquinas, barriletes,etc., localizadas nas
aberturas do edifícios, com área inferior a 70 m2, desde que o
caminhamento de apenas uma magueira de incêndio do hidrante
ou mangotinho do pavimento inferior assegure sua proteção.
Os hidrantes ou mangotinhos devem ser distribuídos de tal forma
que qualquer ponto da área a ser protegida seja alcançado por
um esguicho para os sistemas 1,2 e 5 e dois esguichos para o
sistema 3 e 4, considerando-se o comprimento da(s)
mangueira(s) e seu trajeto real.
Edificações adaptadas:
a) Os hidrantes ou mangotinhos devem ser distribuídos de tal forma que
qualquer ponto da párea protegida possa ser alcançado por jato d’água,
considerando-se o caminhamento de 45 m de mangueira para incêndio.
b) São toleradas as instalações de hidrantes em posições centrais,
afastadas até 10 m de portas, escadas, rampas e acessos aos pavimentos.
As portas dos abrigos dos hidrantes:
a) podem ser pintadas em outra cor, mesmo quando metálicas, combinando
com a arquitetura e decoração do ambiente, desde que as mesmas estejam
devidamente identificadas com o dístico “incêndio” – fundo vermelho com
inscrição na cor branca ou amarela;
b) podem possuir abertura no centro com área mínima de 0,04 m2, fechada
com material transparente (vidro, acrílico, etc.), identificado com o dístico
“incêndio” – fundo vermelho com inscrição na cor branca ou amarela.

Principais anomalias
As anomalias mais comuns encontradas em hidrantes são:








Divisórias instaladas impedindo o acesso aos hidrantes;
Portas que se abrem e obstruem os hidrantes;
Hidrantes instalados em espaços inadequados, como portas que não são
abertas a 180º.
Mangueiras acondicionadas em espiral, quando deveriam estar aduchadas;
Falta de esguicho ou chave de mangueiras nos abrigos para hidrantes;
Registro fechado na tubulação principal de alimentação;
Instalações em PVC internas às edificações;

Elaborado por:

Analisado por:

Professor :

Marcelo Gandra Falcone

Alessandra Aparecida Vieira

Marcelo Gandra Falcone

QUANDO IMPRESSO CONSIDERAR PIRATARIA - CÓPIA NÃO AUTORIZADA
UNINOVE

Engenharia de Avaliações e Perícias
Manutenção Predial e Avaliação de Máquinas
e Equipamentos





Rev. B
16/07/2011
Folha 185/424

Canalizações executadas sem correto ancoramento e sem solda apropriada
nas junções;
Obstrução ao acesso dos equipamentos;
Registro de recalque em caixa sem drenagem, obstruído ou incompleto;

Recomendações e orientações técnicas
Para um melhor controle e prevenção no tocante ao equipamento e sua
utilização, têm-se algumas orientações:








Toda mangueira deve ser inspecionada e ensaiada hidrostaticamente
antes de ser colocada em uso;
Toda mangueira de ser inspecionada de acordo com a periodicidade
recomendada pelo fabricante;
Para limpeza e lavagem das mangueiras, utilizar somente água potável
e secá-las à sombra interna e externamente;
O sistema deve ser dotado de alarme audiovisual, indicativo do uso de
qualquer ponto de hidrante que é acionado;
O sistema de hidrante de ser utilizado, preferencialmente, por duas
pessoas, atentando para: retirar a mangueira, acoplar as adaptações da
mangueira no esguicho e no registro do hidrante, utilizar a chave de
mangueira, quando necessário, abrir o registro, ligar a bomba, iniciar o
teste em forma de combate;
A mangueira de ser dobrada em ziguezague, a fim de facilitar sua rápida
utilização.

Figura 71 – Hidrantes - IBAPE –SP, PUJADAS, F.Z.A.; GOMIDE, T.L.F.; FAGUNDES, J.C.P. e OUTROS, Inspeção Predial –
Check-Up Predial: Guia da Boa Prevenção. São Paulo: Leud, 2009.

Elaborado por:

Analisado por:

Professor :

Marcelo Gandra Falcone

Alessandra Aparecida Vieira

Marcelo Gandra Falcone

QUANDO IMPRESSO CONSIDERAR PIRATARIA - CÓPIA NÃO AUTORIZADA
UNINOVE

Rev. B

Engenharia de Avaliações e Perícias
Manutenção Predial e Avaliação de Máquinas
e Equipamentos

16/07/2011
Folha 186/424

9.10.6 Sistemas de Instalações Fixas de Combate a Incêndios
Descrição do Sistema:
As instalações fixas de combate a incêndios destinam-se a detectar o
início do fogo e resfriá-lo.
Os tipos são:


Detector de fumaça.



Detector de temperatura.



Detector de chama.



Sprinklers: redes de pequenos chuveiros no teto dos ambientes.



Dilúvio: gera um nevoeiro d'água.



Cortina d'água: rede de pequenos chuveiros afixados no teto e alinhados
para, quando acionados, formar uma cortina d'água.



Resfriamento: rede de pequenos chuveiros instalados ao redor e no topo
de tanques de gás, petróleo, gasolina e álcool. Geralmente são usados
em áreas industriais.



Halon: a partir de posições tomadas pelo Ministério da Saúde, o Corpo
de Bombeiros NÃO tem recomendado a utilização desse sistema, uma
vez que seu agente é composto por CFC, destruidor da camada de
ozônio.

Figura 72 Sensor misto Fumaça e Temperatura – Fotografia CONTRU 2010.

Elaborado por:

Analisado por:

Professor :

Marcelo Gandra Falcone

Alessandra Aparecida Vieira

Marcelo Gandra Falcone

QUANDO IMPRESSO CONSIDERAR PIRATARIA - CÓPIA NÃO AUTORIZADA
UNINOVE

Rev. B

Engenharia de Avaliações e Perícias
Manutenção Predial e Avaliação de Máquinas
e Equipamentos

16/07/2011
Folha 187/424

9.10.7 Sistema de Chuveiros Automáticos - Sprinkler
Descrição e finalidade do sistema
É um sistema de proteção contra incêndio, pelo método de resfriamento,
destinado a projetar água em forma de chuva, integrado por rede de
abastecimento, reservatório, elemento sensível e bombas. A instalação desse
tipo de proteção será obrigatória quando não forem atendidos os limites
estabelecidos para a compartimentação horizontal e vertical para a edificação,
em função da altura, ocupação e área construída, não sendo necessária a sua
instalação em unidades residenciais.
Principais anomalias. Nos chuveiros automáticos, as anomalias mais comuns
são:











Os fios elétricos de alimentação das bombas de recalque, quando dentro de
área protegida pelos chuveiros automáticos, sem a devida proteção contra
danos mecânicos e químicos, fogo e umidade;
Sistema instalado inadequadamente, ou seja, sem finalidade;
Alteração de ocupação da área de utilização, sem readequação do sistema
de chuveiros automáticos.
Tem que der certificados conforme as normas ABNT NBR 6135 e 6125
Os fundamentos da proteção contra incêndios das edificações com
sprinklers estão baseados no princípio da descarga automática de água,
com densidade suficiente para controlar ou extinguir os focos iniciais de
incêndio
A distribuição dos sprinklers deve ser por toda a área protegida;
A interferência à descarga de água por obstruções deve ser mínima, de
acordo com as normas;
Os Sprinklers não podem, estar muito longe do telhado nem dentro de
cubículos determindas pelas vigas. A escolha da localização em relação ao
teto ou ao telhado deve ser bem estudada para se obter uma sensibilidade
adequada para o acionamento, em função de acúmulo mais rápido de calor
junto ao sprinkler;

Principais falhas:





Detectores sujos e/ou pintados, sendo que os mesmos devem estar limpos
e sem resíduos de sujeira, pois a temperatura nominal de funcionamento
sofreria alterações;
Chuveiros automáticos com área de atuação prejudicada por divisórias,
materiais, luminárias, empilhamento de materiais etc.;
Materiais como fios, encanamentos etc. amarrados nas tubulações do
sistema.

Elaborado por:

Analisado por:

Professor :

Marcelo Gandra Falcone

Alessandra Aparecida Vieira

Marcelo Gandra Falcone

QUANDO IMPRESSO CONSIDERAR PIRATARIA - CÓPIA NÃO AUTORIZADA
UNINOVE

Engenharia de Avaliações e Perícias
Manutenção Predial e Avaliação de Máquinas
e Equipamentos











Rev. B
16/07/2011
Folha 188/424

Os Sprinklers não podem apresentar marcar de ferramentas. Eles somente
ser instalados com ferramentas específicas para a função, evitando desta
forma danos ao equipamento;
Os Sprinklers não podem ser pintados
Não é permitido pendurar objetos nos sprinklers;
Verificar se são realizados periodicamente checagem visual para verificar a
integridade dos sprinklers ;
Verificar se foram testados os componentes do sistema (bombas, válvulas,
tubulações, ...) e a pressurização do sistema como um todo;
Verificar a existência na edificação, em local adequado, uma pequena
reserva de sprinklers para que, no momento em que a troca de uma ou
mais peças forem necessárias, não haja necessidade de realizar uma busca
urgente no mercado;
Erros Comuns:
a) Falta de chuveiros automáticos de reserva;
b) Gongo hidráulico não funcionando;
c) Chuveiros automáticos distantes do teto, sem coletor de calor;
d) Falta de drenos e conexões remotas de teste do sistema;
e) Falta de sinalização no registro de recalque;
f) Falta de conexão de ensaio da bomba;
g) Falta de canalização de retorno do recalque da bomba ao reservatório
para evitar o aquecimento (6mm);
h) Falta de pessoal treinado, embora uma equipe tenha sido declarada no
projeto sem saberem que tinham sido indicados;

Recomendações e orientações técnicas
Para um melhor controle e segurança:



Todo edifício deve ter um estoque mínimo de detectores sobressalentes
para a reposição imediata, caso necessário;
Todo o sistema de chuveiros automáticos deve ser inspecionado de acordo
com recomendações dos fabricantes ou utilização e/ou mudança de layout.

Elaborado por:

Analisado por:

Professor :

Marcelo Gandra Falcone

Alessandra Aparecida Vieira

Marcelo Gandra Falcone

QUANDO IMPRESSO CONSIDERAR PIRATARIA - CÓPIA NÃO AUTORIZADA
UNINOVE

Rev. B

Engenharia de Avaliações e Perícias
Manutenção Predial e Avaliação de Máquinas
e Equipamentos

16/07/2011
Folha 189/424

9.10.8 Sistema de Iluminação de Emergência:
Descrição do Sistema
A iluminação de emergência, que entra em funcionamento quando falta energia
elétrica, pode ser alimentada por gerador ou bateria e acumuladores (nãoautomotiva).
Principais Anomalias e Falhas:
 Sistema de iluminação de emergência de acordo com NBR 10.898/99.
 Nos locais de Reunião, as áreas comuns, por onde existam rotas de fuga,
devem possuir iluminação de Balizamento, independente da rede geral, que
atenda à NBR 10.898.
 Os corredores, escadas, banheiros e áreas comuns por onde existam rotas
de fuga devem possuir iluminação de emergência, independente da rede
geral, que atenda à NBR 10.898.
 Sistema de aclaramento (<= 3 lux) -> luz tênue mínima em platéias escuras.
 Sistema de Balizamento (<= 5 lux) -> luz tênue mimina indicativa de rotas e
saídas em platéias escuras.
 Erros Comuns:
a) Alguns pontos de luz ou todo o sistema desativado;
b) Falta, parcial ou total, de solução nos acumuladores;
c) Pontos de luz com luminosidade insuficiente para o local, decorrente de
potência da central, fiação ou lâmpadas subdimensionadas;
d) Não cumprimento da instalação de todos os pontos de luz que foram
previstos no projeto aprovado;
e) Instalação ou alteração de divisórias sem revisão do projeto;
f) Substituição do fusível por pedaços de metal; papel laminado de cigarro
e similares;
Recomendaçôes e Orientaçôes
 Faça constantemente a revisão dos pontos de iluminação.
 A iluminação de emergência é obrigatória também nos elevadores.
 Baterias As baterias devem ser instaladas acima do piso e afastadas da
parede, em local seco, ventilado e sinalizado. Providencie a manutenção
periódica das baterias. De acordo com as indicações do fabricante, devem
ser verificados seus terminais (pólos) e a densidade do eletrólito.

Figura 73 – Bloco autônomo desligado da tomada.
Elaborado por:

Analisado por:

Professor :

Marcelo Gandra Falcone

Alessandra Aparecida Vieira

Marcelo Gandra Falcone

QUANDO IMPRESSO CONSIDERAR PIRATARIA - CÓPIA NÃO AUTORIZADA
UNINOVE

Rev. B

Engenharia de Avaliações e Perícias
Manutenção Predial e Avaliação de Máquinas
e Equipamentos

16/07/2011
Folha 190/424

9.10.9 Sistema de Sinalização:
Descrição Geral segundo a IT 20 do Corpo de Bombeiros da Policia Militar do
Estado de São Paulo, NBR 13434:1995 – Sinalização de segurança contra
incêndio e pânico – Formas, dimensões e cores – Padronização, NBR
13435:1995 – Sinalização de segurança contra incêndio e pânico –
Procedimento e NBR 13437:1995 – Símbolos gráficos para sinalização contra
incêndio e pânico – Simbologia
Cores
1. Cores de sinalização - as cores de segurança e cores de contraste são
apresentadas na Tabela abaixo:

2. Cores de segurança - a cor de segurança deve cobrir, no mínimo, 50% da
área do símbolo, exceto no símbolo de proibição, onde este valor deve ser, no
mínimo, de 35%. A essa cor é atribuída uma finalidade ou um significado
específico de segurança.
3. Aplicação das cores de segurança:
a) Vermelha - utilizada para símbolos de proibição, emergência, e identifi cação
de equipamentos de combate a incêndio e alarme;
b) Verde - utilizada para símbolos de orientação e salvamento;
c) Preta - utilizadas para símbolos de alerta e sinais de perigo.
4. Cores de contraste - as cores de contraste são a branca ou amarela,
conforme especifi cado na Tabela 3, para sinalização de proibição e alerta,
respectivamente. Essas cores têm a finalidade de contrastar com a cor de
segurança, de modo a fazer com que esta se sobressaia.
5. As cores de contraste devem ser fotoluminescentes, para a sinalização de
orientação e salvamento e de equipamentos.

Elaborado por:

Analisado por:

Professor :

Marcelo Gandra Falcone

Alessandra Aparecida Vieira

Marcelo Gandra Falcone

QUANDO IMPRESSO CONSIDERAR PIRATARIA - CÓPIA NÃO AUTORIZADA
UNINOVE

Rev. B

Engenharia de Avaliações e Perícias
Manutenção Predial e Avaliação de Máquinas
e Equipamentos

16/07/2011
Folha 191/424

Formas geométricas e dimensões para a sinalização de emergência
1. Dimensões básicas da sinalização
A > L2 2000 Onde:
A = Área da placa, em m2 .
L = Distância do observador à placa, em m (metros). Esta relação é válida para
L < 50 m, sendo que deve ser observada a distância mínima de 4 m, conforme
Tabela I
2. A Tabela 1 apresenta dimensõesvalores referenciais para algumas
distâncias pré-definidas.
3. Formas da sinalização:
a) Circular - utilizada para implantar símbolos de proibição e ação de comando
(ver forma geométrica da Tabela 1);
b) Triangular - utilizada para implantar símbolos de alerta (ver forma
geométrica da Tabela 1);
c) Quadrada e retangular - utilizadas para implantar símbolos de orientação,
socorro, emergência, identificação de equipamentos utilizados no combate a
incêndio, alarme e mensagens escritas (ver forma geométrica da Tabela 2).
4. Sinalização de proibição:
a) Forma: circular;
b) Cor de contraste: branca;
c) Barra diametral e faixa circular (cor de segurança): vermelha;
d) Cor do símbolo: preta;
e) Margem (opcional): branca.
5. Sinalização de alerta:
a) Forma: triangular;
b) Cor do fundo (cor de contraste): amarela;
c) Moldura: preta;
d) Cor do símbolo (cor de segurança): preta;
e) Margem (opcional): amarelo.
6. Sinalização de orientação e salvamento:
a) Forma: quadrada ou retangular;
b) Cor do fundo (cor de segurança): verde;
c) Cor do símbolo (cor de contraste): fotoluminescente;
d) Margem (opcional): fotoluminescente.
7. Sinalização de equipamentos:
a) Forma: quadrada ou retangular;
b) Cor de fundo (cor de segurança): vermelha;
c) Cor do símbolo (cor de contraste): fotoluminescente;
d) Margem (opcional): fotoluminescente.
Elaborado por:

Analisado por:

Professor :

Marcelo Gandra Falcone

Alessandra Aparecida Vieira

Marcelo Gandra Falcone

QUANDO IMPRESSO CONSIDERAR PIRATARIA - CÓPIA NÃO AUTORIZADA
UNINOVE

Rev. B

Engenharia de Avaliações e Perícias
Manutenção Predial e Avaliação de Máquinas
e Equipamentos

16/07/2011
Folha 192/424

Altura mínima das letras em placa de sinalização em função da distância
de leitura
1 No caso de emprego de letras, elas devem ser grafadas obedecendo à
relação:
h > L / 125 Onde:
h= Altura da letra, em metros.
L= Distância do observador à placa, em metros.
2. A Tabela abaixo, apresenta valores de altura de letra para distâncias predefi
nidas. Todas as palavras e sentenças devem apresentar letras em caixa alta,
fonte Univers 65 ou Helvetica Bold.

Elaborado por:

Analisado por:

Professor :

Marcelo Gandra Falcone

Alessandra Aparecida Vieira

Marcelo Gandra Falcone

QUANDO IMPRESSO CONSIDERAR PIRATARIA - CÓPIA NÃO AUTORIZADA
UNINOVE

Rev. B

Engenharia de Avaliações e Perícias
Manutenção Predial e Avaliação de Máquinas
e Equipamentos

16/07/2011
Folha 193/424

4. Simbologia para a Sinalização de Emergência
As formas geométricas e as cores de segurança e de contraste devem ser
utilizadas somente nas combinações descritas a seguir, a fim de obter quatro
tipos básicos de sinalização de segurança, observando os requisitos das
tabelas apresentadas para proporcionalidades paramétricas e os requisitos da
para as cores.

Sinalização de proibição - a sinalização de proibição deve obedecer a:
a) Forma: circular;
b) Cor de contraste: branca;
c) Barra diametral e faixa circular (cor de segurança): vermelha;
d) Cor do símbolo: preta;
e) Margem (opcional): branca;
f) Proporcionalidades paramétricas.
Sinalização de alerta - a sinalização de alerta deve obedecer a:
a) Forma: triangular;
b) Cor do fundo (cor de contraste): amarela;
c) Moldura: preta;
d) Cor do símbolo (cor de segurança): preta ;
e) Margem (opcional): branca;
f) Proporcionalidades paramétricas.
Sinalização de orientação e salvamento - a sinalização de orientação deve
obedecer a:
a) Forma: quadrada ou retangular;
b) Cor do fundo (cor de segurança): verde;
c) Cor do símbolo (cor de contraste): fotoluminescente;
d) Margem (opcional): fotoluminescente;
e) Proporcionalidades paramétricas.
Sinalização de equipamentos - a sinalização de equipamentos de combate a
incêndio deve obedecer:
a) Forma: quadrada ou retangular;
b) Cor de fundo (cor de segurança): vermelha;
c) Cor do símbolo (cor de contraste): fotoluminescente;
d) Margem (opcional): fotoluminescente;
e) Proporcionalidades paramétricas.
Elaborado por:

Analisado por:

Professor :

Marcelo Gandra Falcone

Alessandra Aparecida Vieira

Marcelo Gandra Falcone

QUANDO IMPRESSO CONSIDERAR PIRATARIA - CÓPIA NÃO AUTORIZADA
UNINOVE

Rev. B

Engenharia de Avaliações e Perícias
Manutenção Predial e Avaliação de Máquinas
e Equipamentos

16/07/2011
Folha 194/424

Elaborado por:

Analisado por:

Professor :

Marcelo Gandra Falcone

Alessandra Aparecida Vieira

Marcelo Gandra Falcone

QUANDO IMPRESSO CONSIDERAR PIRATARIA - CÓPIA NÃO AUTORIZADA
UNINOVE

Rev. B

Engenharia de Avaliações e Perícias
Manutenção Predial e Avaliação de Máquinas
e Equipamentos

16/07/2011
Folha 195/424

Elaborado por:

Analisado por:

Professor :

Marcelo Gandra Falcone

Alessandra Aparecida Vieira

Marcelo Gandra Falcone

QUANDO IMPRESSO CONSIDERAR PIRATARIA - CÓPIA NÃO AUTORIZADA
UNINOVE

Rev. B

Engenharia de Avaliações e Perícias
Manutenção Predial e Avaliação de Máquinas
e Equipamentos

16/07/2011
Folha 196/424

Elaborado por:

Analisado por:

Professor :

Marcelo Gandra Falcone

Alessandra Aparecida Vieira

Marcelo Gandra Falcone

QUANDO IMPRESSO CONSIDERAR PIRATARIA - CÓPIA NÃO AUTORIZADA
UNINOVE

Rev. B

Engenharia de Avaliações e Perícias
Manutenção Predial e Avaliação de Máquinas
e Equipamentos

16/07/2011
Folha 197/424

Elaborado por:

Analisado por:

Professor :

Marcelo Gandra Falcone

Alessandra Aparecida Vieira

Marcelo Gandra Falcone

QUANDO IMPRESSO CONSIDERAR PIRATARIA - CÓPIA NÃO AUTORIZADA
UNINOVE

Rev. B

Engenharia de Avaliações e Perícias
Manutenção Predial e Avaliação de Máquinas
e Equipamentos

16/07/2011
Folha 198/424

Elaborado por:

Analisado por:

Professor :

Marcelo Gandra Falcone

Alessandra Aparecida Vieira

Marcelo Gandra Falcone

QUANDO IMPRESSO CONSIDERAR PIRATARIA - CÓPIA NÃO AUTORIZADA
UNINOVE

Rev. B

Engenharia de Avaliações e Perícias
Manutenção Predial e Avaliação de Máquinas
e Equipamentos

16/07/2011
Folha 199/424

Elaborado por:

Analisado por:

Professor :

Marcelo Gandra Falcone

Alessandra Aparecida Vieira

Marcelo Gandra Falcone

QUANDO IMPRESSO CONSIDERAR PIRATARIA - CÓPIA NÃO AUTORIZADA
UNINOVE

Rev. B

Engenharia de Avaliações e Perícias
Manutenção Predial e Avaliação de Máquinas
e Equipamentos

16/07/2011
Folha 200/424

Elaborado por:

Analisado por:

Professor :

Marcelo Gandra Falcone

Alessandra Aparecida Vieira

Marcelo Gandra Falcone

QUANDO IMPRESSO CONSIDERAR PIRATARIA - CÓPIA NÃO AUTORIZADA
UNINOVE

Rev. B

Engenharia de Avaliações e Perícias
Manutenção Predial e Avaliação de Máquinas
e Equipamentos

16/07/2011
Folha 201/424

Elaborado por:

Analisado por:

Professor :

Marcelo Gandra Falcone

Alessandra Aparecida Vieira

Marcelo Gandra Falcone

QUANDO IMPRESSO CONSIDERAR PIRATARIA - CÓPIA NÃO AUTORIZADA
UNINOVE

Rev. B

Engenharia de Avaliações e Perícias
Manutenção Predial e Avaliação de Máquinas
e Equipamentos

16/07/2011
Folha 202/424

Elaborado por:

Analisado por:

Professor :

Marcelo Gandra Falcone

Alessandra Aparecida Vieira

Marcelo Gandra Falcone

QUANDO IMPRESSO CONSIDERAR PIRATARIA - CÓPIA NÃO AUTORIZADA
UNINOVE

Rev. B

Engenharia de Avaliações e Perícias
Manutenção Predial e Avaliação de Máquinas
e Equipamentos

16/07/2011
Folha 203/424

Elaborado por:

Analisado por:

Professor :

Marcelo Gandra Falcone

Alessandra Aparecida Vieira

Marcelo Gandra Falcone

QUANDO IMPRESSO CONSIDERAR PIRATARIA - CÓPIA NÃO AUTORIZADA
UNINOVE

Rev. B

Engenharia de Avaliações e Perícias
Manutenção Predial e Avaliação de Máquinas
e Equipamentos

16/07/2011
Folha 204/424

9.10.10 Sistema de Detecção e Alarme Contra Incêndio:















Sistema de detecção e alarme contra incêndio de acordo com NBR
17240/2010.
Todo sistema deve ter duas fontes de alimentação. A principal é a rede de
tensão alternada e a auxiliar é constituída por baterias ou no-break. Quando
a fonte de alimentação auxiliar for constituída por bateria de acumuladores,
esta deve ter autonomia mínima de 24 horas em regime de supervisão,
sendo que o regime de alarme deve ser de no mínimo 15 minutos, para
suprimento das indicações sonoras e/ou visuais ou o tempo necessário para
a evacuação da edificação.
As centrais de detecção e alarme deverão ter dispositivo de teste dos
indicadores luminosos e dos sinalizadores acústicos.
A distância máxima a ser percorrida por uma pessoa, em qualquer ponto
da área protegida até o acionador manual mais próximo, não deve ser
superior a 30 (trinta) metros. A distância máxima a ser percorrida, livre de
obstáculos, por uma pessoa em qualquer ponto da área protegida até o
acionador manual mais próximo não deve ser superior a 16 m e a distância
entre os acionadores não deve ultrapassar 30 m. Na separação vertical,
cada andar da edificação deve ter pelo menos 1 (um) acionador manual.
Preferencialmente, os acionadores manuais devem se localizados junto aos
Hidrantes.
O acionador manual deve ser instalado em locais de maior probabilidade de
trânsito de pessoas em caso de emergência, tais como: nas saídas de
áreas de trabalho, lazer, em corredores, halls, saídas de emergência para o
exterior, etc.
Nos Edifícios com mais de um pavimento, deverá ser previsto pelo menos
um acionador manual em cada pavimento. Os mezaninos estarão
dispensados desta exigência, caso o acionador manual do piso principal dê
cobertura/caminhamento para a área do mezanino, atendendo o item 5.7
acima.
Nos Locais de Reunião de Público, tipo: casas de show, música,
espetáculos, danças, discoteca, danceteria, salões de baile, etc. , onde se
tem naturalmente uma situação acústica elevada, será obrigatória também
a instalação de sinalizadores visuais, quando houver a exigência de
sistema de detecção e alarme.
Erros Comuns:
1. Instalação do painel central em local sem permanência constante de
pessoas;
2. Vidros quebrados nos pontos de acionamento manual;
3. Falta de indicação das providências a serem tomadas para o
acionamento manual de alarmes;
4. Fiação aparente e passando por locais sujeitos a avarias decorrentes de
incêndios;
5. Substituição do fusível por pedaços de metal, papel laminado de cigarro
e similares;

Elaborado por:

Analisado por:

Professor :

Marcelo Gandra Falcone

Alessandra Aparecida Vieira

Marcelo Gandra Falcone

QUANDO IMPRESSO CONSIDERAR PIRATARIA - CÓPIA NÃO AUTORIZADA
UNINOVE

Rev. B

Engenharia de Avaliações e Perícias
Manutenção Predial e Avaliação de Máquinas
e Equipamentos

16/07/2011
Folha 205/424

9.10.11 Brigada de Incêndio
Descrição do Sistema: A equipe de emergência é a brigada de combate a
incêndio. Ela é formada por pessoas treinadas, com conhecimentos sobre
prevenção contra incêndios, abandono de edificações e pronto-socorro, além
de devidamente dimensionada de acordo com a população existente na
edificação.
Anomalias e Falhas: FALTA DE CONSTATAÇÂO DE:
 Formação de Brigada de Incêndio de acordo com IT 17/2004 e NBR
14276/99.
 Critérios básicos para aceitação de Brigadista:
Permanecer na Edificação durante seu turno de trabalho; possuir boa
condição física e boa saúde; Possuir bom conhecimento das instalações; ter
mais de 18 anos; ser alfabetizado.
 Pelo Decreto 34.571/94: Os estabelecimentos mencionados no artigo 1,
teatros, cinemas, circos, festas, restaurantes, boites, auditórios e outros
locais de reunião que se destinem a exibição de espetáculos, programados
ou não, deverão manter durante todo o período em que estiverem abertos
ao público, “ Brigada de Combate a Incêndio”, devidamente uniformizados e
identificados por crachá.


Erros Comuns:
a) Equipe não treinada, embora constasse no projeto técnico aprovado que
havia equipe treinada; as pessoas citadas nem sabiam que haviam sido
indicadas para tal função;
b) Dificilmente a carga horária de treinamento é seguida;
c) Os funcionários treinados saem da empresa e as vagas deixadas não
são preenchidas;
d) Componentes com conhecimento insuficiente ou sem treinamento
prático;

Recomendações:








Promover vistoria semestral dos equipamentos de prevenção e combate a
incêndios, assim como o treinamento de abandono de prédio com
moradores e usuários.
Manter relação das pessoas com dificuldade de locomoção, permanente ou
temporária, deve ser atualizada constantemente e os procedimentos
necessários para a retirada dessas pessoas em situações de emergência.
A Brigada deve garantir a saída dos ocupantes do prédio de acordo com o
"Plano de Abandono", não esquecendo de verificar a existência de
retardatários em sanitários, salas e corredores.
A relação e a localização dos membros da equipe de emergência devem
ser conhecidas por todos os usuários.

Elaborado por:

Analisado por:

Professor :

Marcelo Gandra Falcone

Alessandra Aparecida Vieira

Marcelo Gandra Falcone

QUANDO IMPRESSO CONSIDERAR PIRATARIA - CÓPIA NÃO AUTORIZADA
UNINOVE

Rev. B

Engenharia de Avaliações e Perícias
Manutenção Predial e Avaliação de Máquinas
e Equipamentos

16/07/2011
Folha 206/424

9.10.12 AVCB – Auto de Vistoria do Corpo de Bombeiros
Auto de Vistoria do Corpo de Bombeiros (A. V. C. B.): é o documento emitido
pelo Corpo de Bombeiros da Policia Militar do Estado de São Paulo
(CBPMESP) certificando que, durante a vistoria, a edificação possuía as
condições de segurança contra incêndio (É um conjunto de medidas
estruturais, técnicas e organizacionais integradas para garantir a edificação um
nivel ótimo de proteção no segmento de segurança contra incêndios e pânico.),
previstas pela legislação e constantes no processo, estabelecendo um período
de revalidação.


Legislação : DECRETO N. 46.076 de 31/08/2001. Regulamento de
Segurança contra Incêndio das Edificações e área de risco.
1. Aprovação do AVCB: Artigo 9. O AVCB será expedido pelo Corpo de
Bombeiros, desde que as edificações e áreas de risco estejam com suas
medidas de segurança contra incêndio projetados e instalados de
acordo com respectivo processo aprovado, após a vistoria de que trata o
artigo 10.
2. Validade do AVCB: Artigo 9. item 6. O AVCB terá validade, a contar de
sua expedição; de 2 (dois) anos para os locais de reunião de público e
de 3 (três) anos para as demais ocupações, com exceção das
construções provisórias, que terão prazo estabelecido de acordo com
suas características peculiares, conforme descrito na ITCB de
Procedimentos Administrativos.

Em que casos é obrigatório o A.V.C.B.:
I – construção e reforma;
II – mudança da ocupação ou uso;
III – ampliação da área construída;
IV – regularização das edificações e áreas de risco;
V - construções provisórias (circos, eventos, etc.).
Em que casos não é obrigatório o A.V.C.B.:
I - residências exclusivamente unifamiliares;
II - residências exclusivamente unifamiliares localizadas no pavimento superior
de ocupação mista, com até dois pavimentos e que possuam acessos
independente

Elaborado por:

Analisado por:

Professor :

Marcelo Gandra Falcone

Alessandra Aparecida Vieira

Marcelo Gandra Falcone

QUANDO IMPRESSO CONSIDERAR PIRATARIA - CÓPIA NÃO AUTORIZADA
UNINOVE

Rev. B

Engenharia de Avaliações e Perícias
Manutenção Predial e Avaliação de Máquinas
e Equipamentos

16/07/2011
Folha 207/424

9.10.12 Sistema de Equipamentos e Máquinas em geral
A inspeção deverá ser restrita a Telefonia, Antenas , CTV, Geradores,
Elevadores, Bombas, Etc
9.10.12.1
Instalação de Equipamento Complementar / Gerador de
Emergência:

















Verificar se existe reservatório de combustível ou produto químico inflável
maior que 250 litros ou mais de um reservatórios inter-comunicantes
totalizando mais de 250 litros.
Caso afirmativo verificar existência de contrato com EPAE e Alvará de
Equipamento em validade.
Verificar se existe porta corta-fogo em salas fechadas dentro de edificações
ou subestações
Verificar a existência e validade dos extintores de incêndio para líquidos
inflamáveis e equipamentos elétricos;
Verificar a existência de placa indicativa de “Não fume” e “Inflamável”;
Verificar se a sala do grupo gerador é devidamente ventilada; Se utilizar o
grupo numa casa ou local fechado verificar se foi providenciada uma
ventilação adequada e conduza os gases de escape para fora do recinto.
Verificar se existe meio de exaustão dos gases produzidos pelo motor;
Verificar se a sala, o chão e o grupo gerador estão limpos e se existem
meios para que sempre que ocorram derramamentos de combustível, óleo,
eletrólito de bateria ou liquido de refrigeração, os mesmos possam ser
imediatamente limpos ou se existe Instalação de Dispositivo que funcione
como Bacia de Contenção para que sempre que ocorram derramamentos
de combustível, óleo, eletrólito de bateria ou liquido de refrigeração, os
mesmos possam ser imediatamente limpos e não contaminem o ambiente
ou causem riscos ao entorno (a bacia de contenção é obrigatória para
tanques maiores que 250 litros e em eventos).
Inexistência de armazenamento de líquidos inflamáveis nas proximidades
do motor;
Verificar se os desperdícios com óleo estão em recipientes metálicos
tapados;
Verificar a existência de agentes que permitam faíscas, chamas ou outras
fontes de ignição nas proximidades do combustível ou das baterias.pois os
vapores do combustível são explosivos. O hidrogênio gerado pela carga das
baterias também é explosivo;
Verificar a inexistência de qualquer fuga (vazamento) no sistema de
combustível;

Elaborado por:

Analisado por:

Professor :

Marcelo Gandra Falcone

Alessandra Aparecida Vieira

Marcelo Gandra Falcone

QUANDO IMPRESSO CONSIDERAR PIRATARIA - CÓPIA NÃO AUTORIZADA
UNINOVE

Rev. B

Engenharia de Avaliações e Perícias
Manutenção Predial e Avaliação de Máquinas
e Equipamentos

16/07/2011
Folha 208/424

9.10.12.2 Isolamento Acústico (nível de ruido) :








Isolamento acústico da edificação de acordo com a Lei n° 13.885/2004.
Conforma Normas NBR 10.151 e 10.152
Equipamentos de medição. As medições devem ser efetuadas com medidor
de nível sonoro, como especificado na IEC 651Sonômetros. Deve ser
utilizada a escala de compensação A e respostas de leitura rápida. O nível
sonoro deve ser medido no local e hora de ocorrência do incômodo.
As medições no ambiente externo devem ser efetuadas a 1,2 m acima do
solo e, no mínimo, a 1,5 m de paredes, edifícios e outras superfícies
refletoras. Quando as circunstâncias exigirem, as medições podem ser
efetuadas a diferentes alturas e próximo à paredes (por exemplo, 0,5 m em
frente a uma janela aberta), desde que isto esteja especificado e levado em
consideração.
As medições nos ambientes internos devem ser efetuadas a uma distância
no mínimo 1 m das paredes; 1,2 m acima do piso e a 1,5 m de janelas. A
fim de se reduzir distorções oriundas de ondas estacionárias, os níveis
sonoros medidos em interiores devem ser a média de pelo menos 3
posições a 0,5 m uma da outra. Isto é especialmente importante para as
medições de ruído da baixa freqüência. A média aritmética das leituras
determina o valor a ser tomado.

Elaborado por:

Analisado por:

Professor :

Marcelo Gandra Falcone

Alessandra Aparecida Vieira

Marcelo Gandra Falcone

QUANDO IMPRESSO CONSIDERAR PIRATARIA - CÓPIA NÃO AUTORIZADA
UNINOVE

Rev. B

Engenharia de Avaliações e Perícias
Manutenção Predial e Avaliação de Máquinas
e Equipamentos

16/07/2011
Folha 209/424

9.10.12.3 Equipamentos de Transporte Vertical:

Descrição do sistema
Presente na grande maioria das edificações, o elevador é um meio de
transporte seguro e eficiente desde que usado e mantido da maneira correta.
O sistema consiste em quatro grupos:
Cabina: O que comumente conhecemos como elevador; local através do qual
as pessoas são transportadas (também é conhecido como “carro”);
Casa de máquinas: Geralmente na cobertura do edifício, ela resguarda os
painéis elétricos e de comando, os geradores e motores de tração, freios e
sistema de ventilação (natural ou forçada);
Poço do elevador: Onde temos as guias que auxiliam no suave deslocamento
da cabina, cabos de tração, peso e contra-peso e sistemas de segurança
(normalmente compostos por sistemas hidráulicos instalados no fundo do
poço);
Andares ou pavimentos: Nos andares temos além das botoeiras de
acionamento (chamada), os sistemas de abertura de porta que são acionados
assim que o elevador estiver nivelado com o piso do pavimento.

Figura 76 –Elevador convencional- IBAPE –SP, PUJADAS, F.Z.A.; GOMIDE, T.L.F.; FAGUNDES, J.C.P. e OUTROS,
Inspeção Predial –Check-Up Predial: Guia da Boa Prevenção. São Paulo: Leud, 2009.

Elaborado por:

Analisado por:

Professor :

Marcelo Gandra Falcone

Alessandra Aparecida Vieira

Marcelo Gandra Falcone

QUANDO IMPRESSO CONSIDERAR PIRATARIA - CÓPIA NÃO AUTORIZADA
UNINOVE

Rev. B

Engenharia de Avaliações e Perícias
Manutenção Predial e Avaliação de Máquinas
e Equipamentos

16/07/2011
Folha 210/424

Figura 77 – Elevador Hidráulico - IBAPE –SP, PUJADAS, F.Z.A.; GOMIDE, T.L.F.; FAGUNDES, J.C.P. e OUTROS, Inspeção
Predial –Check-Up Predial: Guia da Boa Prevenção. São Paulo: Leud, 2009.

Finalidade do sistema
Este sistema tem como finalidade o transporte vertical de passageiros ou
cargas e deve fazê-lo com conforto e segurança, contando para isto, com uma
série de dispositivos.
Existem também procedimentos que devem ser obedecidos pelos seus
usuários, evitando assim um elevado tempo de espera ou mesmo de viagem,
quebra de dispositivos de porta ou mesmo de cabina (iluminação, botoeiras,
etc..). No tocante a segurança, o equipamento dispõe de alarme, sistema de
interfone e luz de emergência, todos situados no interior da cabina e
geralmente (exceto a iluminação de emergência) interligados com a portaria ou
a recepção da edificação.
O sistema de elevadores, referindo-nos as edificações comerciais com
instalações mais modernas, também possuem uma finalidade importante em
situações de emergência que é denominada OEI; a Operação de Emergência e
Incêndio (OEI) consiste na descida obrigatória de todos os elevadores,
independente do sentido de seu deslocamento ou de solicitações de
pavimentos, ao piso térreo em casos de emergência (alarme de incêndio).
Principais anomalias
 Anomalias construtivas:
 Portas de pavimentos arranhadas (raspam ao abrir);
 Sensação de desconforto durante a viagem devido a uma saída ou parada
brusca;
 Alarme não funciona ou está posicionado (campainha) em local onde não
existem pessoas próximas;
 Interfone não funciona;
Elaborado por:

Analisado por:

Professor :

Marcelo Gandra Falcone

Alessandra Aparecida Vieira

Marcelo Gandra Falcone

QUANDO IMPRESSO CONSIDERAR PIRATARIA - CÓPIA NÃO AUTORIZADA
UNINOVE

Engenharia de Avaliações e Perícias
Manutenção Predial e Avaliação de Máquinas
e Equipamentos



Rev. B
16/07/2011
Folha 211/424

Desnível entre piso da cabina e o pavimento onde ocorreu a parada. Em
geral, estas anomalias construtivas são causadas por uma má regulagem
(portas, desnível, velocidade de viagem, etc.) ou por problemas de
instalação (cabos de interfones rompidos em algum ponto, etc.). Também
podem ocorrer falhas de projeto ou mesmo definições erradas, como por
exemplo, a posição do alarme sonoro no hall da edificação ou na portaria.

Anomalias em função da utilização:
•
Quebra de botões da cabina e de pavimentos;
•
Falha nos sistemas de ventilação interna da cabina;
•
Falha no sistema de iluminação da cabina;
•
Vandalismo.
Itens de Inspeção
 Equipamentos de transporte vertical de acordo com NBR .
 Verificar existencia de placa com o numero de registro da PMSP.
 Verificar o número de elevadores. Lembrar que será indispensável à
instalação de elevador em edificações que possuírem mais de um
pavimento e população superior a 600 (seiscentas) pessoas, e que não
possuam rampas para atendimento da circulação vertical.
 Verificar se as travas das portas estão funcionando
 Verificar se os espaços de circulação fronteiras às portas dos elevadores,
em qualquer andar, deverão ter dimensão não inferior a 1,50 m ( um metro
e cinqüenta centímetros ).
 Verificar existência de elevadores ligados ao sistema de emergência
através do gerador.
 Com a finalidade de assegurar o uso por pessoas portadores de
deficiências físicas, o único ou pelo menos um dos elevadores deverá:
a) estar situado em local a eles acessível;
b) estar situado em nível com o pavimento a que servir ou estar interligado
ao mesmo por rampa;
c) ter cabine com dimensões internas mínimas de 1,10 m ( um metro e dez
centímetros ) por 1,40 m ( um metro e quarenta centímetros );
d) ter porta com vão de 0,80 m ( oitenta centímetros );
e) servir ao estacionamento em que haja previsão de vagas de veículos
para pessoas portadores de deficiência físicas.
Plano de Manutenção Predial
Dentre as muitas responsabilidades legais na administração de um
Condomínio, está a contratação de uma empresa de manutenção,
recomendando-se normalmente que esta empresa seja o próprio fabricante do
equipamento, pois, somente ele tem condições efetivas de mantê-lo,
garantindo suas características originais.
Elaborado por:

Analisado por:

Professor :

Marcelo Gandra Falcone

Alessandra Aparecida Vieira

Marcelo Gandra Falcone

QUANDO IMPRESSO CONSIDERAR PIRATARIA - CÓPIA NÃO AUTORIZADA
UNINOVE

Rev. B

Engenharia de Avaliações e Perícias
Manutenção Predial e Avaliação de Máquinas
e Equipamentos

16/07/2011
Folha 212/424

Também é importante que condomínio tenha conhecimento, de que pelo artigo
10 da Lei 10.348 (São Paulo), as empresas conservadoras deverão manter
serviço de prontidão, com no mínimo dois técnicos capacitados, para
atendimento de situações de emergência.
Os contratos de manutenção basicamente se dividem em dois tipos:
•
Contrato de Conservação: prevê somente a utilização de mão de obra
especializada para execução manutenção preventiva / corretiva e atendimento
aos chamados de emergência, não incluindo portanto, materiais e/ou peças de
reposição;
•
Contrato de Manutenção: prevê a utilização de mão de obra
especializada para execução da manutenção preventiva / corretiva e
atendimento dos chamados de emergência, além do fornecimento de
componentes mecânicos, elétricos e eletrônicos, desde que constatado seu
desgaste natural, excluindo-se portanto, a reposição de componentes
danificados por atos de vandalismo ou para modernização/ embelezamento.
Nas visitas mensais para a realização da manutenção, os técnicos da empresa
mantenedora devem fornecer ao Condomínio uma cópia da chamada “ficha de
atendimento”, na qual é preenchido um breve relato do serviço realizado pelo
técnico, incluindo a discriminação das peças utilizadas. É de fundamental
importância que o Condomínio mantenha estas fichas em arquivo, pois este
documento além de retratar o histórico do equipamento, comprova a realização
das substituições de peças e componentes danificados.
Toda e qualquer intervenção quando contratada junto à terceiros, tais como
limpeza de poço do elevador, substituição de espelho da cabina, instalação de
câmeras de vídeo, entre outros, deverá ser previamente comunicada à
empresa mantenedora para que a mesma possa avaliar se fazer-se-á
necessária a presença de um técnico para o acompanhamento dos serviços
e/ou orientar com relação a execução do mesmos.
Pessoas não habilitadas podem gerar intervenções inadequadas com inúmeras
conseqüências, dentre as quais podemos citar riscos de acidentes graves,
diminuição da vida útil dos equipamentos, desativação dos componentes de
segurança e outros.
O Condomínio é responsável pela limpeza interna da cabina (espelhos,
revestimentos, teto, piso, etc) enquanto que a mantenedora é responsável pela
limpeza do poço dos elevadores e sala de máquinas, ambos locais cujo acesso
deve ser restrito aos técnicos da mantenedora e pessoas habilitadas / préautorizadas.

Elaborado por:

Analisado por:

Professor :

Marcelo Gandra Falcone

Alessandra Aparecida Vieira

Marcelo Gandra Falcone

QUANDO IMPRESSO CONSIDERAR PIRATARIA - CÓPIA NÃO AUTORIZADA
UNINOVE

Rev. B

Engenharia de Avaliações e Perícias
Manutenção Predial e Avaliação de Máquinas
e Equipamentos

16/07/2011
Folha 213/424

A sala de máquinas, geralmente localizada na cobertura da edificação, abriga
as máquinas, quadros de comando, polias, motores e outros componentes e
responsáveis pelo funcionamento do elevador, e portanto, trata-se de local que
deve ser mantido livre de objetos estranhos, com ventilação adequada, livre de
infiltrações e permanentemente trancada por questões de segurança.
Lembrem-se daquela placa de comunicação visual instalada ao lado do
elevador com os dizeres “Antes de entrar no elevador verifique se o mesmo
encontra-se parado neste andar”. Esta frase nos remete a uma importante
reflexão com relação aos aspectos de segurança, pois o elevador, apesar de
vistoriado periodicamente pelos técnicos quando da realização da
manutenção, também deve ser constantemente observado pelo Condomínio
durante a sua utilização rotineira; como exemplo, podemos citar a atenção que
devemos ter em relação ao nivelamento de piso, ou seja, ao abrir as portas
(porta de cabina e de pavimento), o piso da cabina deverá estar nivelado com o
piso do pavimento, evitando assim acidentes.
Dentre os dispositivos de segurança normalmente verificados pelos técnicos
podemos citar:
•
Trinco de porta: elemento responsável por garantir que o elevador não
se desloque até que as portas de cabina e pavimento estejam totalmente
fechadas, atuando no conjunto fechador e trinco;
•
Limitador de velocidade: elemento responsável pelo monitoramento da
velocidade do elevador, composto por componentes de segurança elétrica e
mecânica (freios de segurança e pára-choque), que atuam quando ocorrem
alterações bruscas das velocidades pré-estabelecidas no sistema, geralmente
causadas por alguma pane, parando simultaneamente o elevador.
Recomendações e orientações técnicas
Quando falamos de segurança, é fundamental tratarmos da questão referente
ao resgate de passageiros presos. Independentemente se a causa da parada
do elevador ocorreu por falha de algum componente do sistema ou falta de
energia elétrica, nestas situações, o procedimento correto a ser adotado é o
acionamento imediato da empresa mantenedora pelo Condomínio, que deverá
ainda manter os passageiros calmos, informando-os de que o resgate foi
acionado e encontra-se a caminho. O resgate nunca deverá ser feito por
pessoas não habilitadas, pois poderão ocorrer graves acidentes caso o
elevador volte a se deslocar no momento da sua realização.
A falta de conhecimento sobre a maneira correta de se utilizar o elevador pode
gerar inconvenientes aos seus usuários e/ou prejuízos ao Condomínio. Diante
deste cenário, várias empresas mantenedoras/fabricantes já oferecem aos
seus clientes cursos para zeladores / administradores, onde são abordados
Elaborado por:

Analisado por:

Professor :

Marcelo Gandra Falcone

Alessandra Aparecida Vieira

Marcelo Gandra Falcone

QUANDO IMPRESSO CONSIDERAR PIRATARIA - CÓPIA NÃO AUTORIZADA
UNINOVE

Rev. B

Engenharia de Avaliações e Perícias
Manutenção Predial e Avaliação de Máquinas
e Equipamentos

16/07/2011
Folha 214/424

temas como: noções básicas sobre funcionamento de elevador, seus principais
componentes de segurança, procedimentos a serem adotados durante a
paralisação do elevador e a forma correta de agir em caso de passageiro
preso.
Recomendamos que o Condomínio, seja no recebimento de novos
equipamentos / modernização ou após um longo período de operação e
manutenção dos equipamentos existentes, procure por uma avaliação de um
consultor especializado. Damos a seguir algumas dicas para um rápido “check
up” possível de ser executado pelo Condomínio:

Documentação / sinalização:
 Manter em local visível a chapa de identificação / registro do elevador junto
a Prefeitura, fornecida por ocasião da emissão do Alvará de Instalação;
 Manter em local visível a placa “Antes de entrar no elevador verifique se o
m mesmo encontra-se parado neste andar”, instalada no hall;
 Manter em cada elevador, em qualquer lugar de destaque, placa indicativa
do nome, endereço e telefone, atualizados, dos responsáveis pela
instalação e conservação;
 Manter em local de fácil acesso a RIA – Relatório de Inspeção Anual, cuja
emissão é obrigatória pela empresa de manutenção.

Casa de Máquinas e poço do elevador:
 Garantir o acesso restrito à empresa de manutenção;
 Manter em local visível a ficha de atendimento (histórico);
Observar periodicamente a existência de ruídos e / ou odores anormais – nesta
situação, recomendamos o acionamento imediato da empresa de manutenção.

• Operação do elevador:
 o Observar o funcionamento de botoeiras no andar;
 o Observar o nivelamento de pisos (elevador e andar) conforme
mencionamos anteriormente;
 o Observar se a porta do elevador abre somente quando o mesmo
estiver parado e nivelado em relação ao andar destino;
 o Observar o funcionamento do ventilador da cabina (quando existir)
durante a viajem;
 o Observar a existência de ruídos ou deslocamento turbulento (balanço)
do elevador durante o percurso (viajem);
 o Testar periodicamente (recomendamos a freqüência semanal) o
interfone e o alarme de emergência (dentro da cabina);
 o Solicitar para que a empresa de manutenção teste a iluminação de
emergência dentro da cabina e na sala de máquinas.
Elaborado por:

Analisado por:

Professor :

Marcelo Gandra Falcone

Alessandra Aparecida Vieira

Marcelo Gandra Falcone

QUANDO IMPRESSO CONSIDERAR PIRATARIA - CÓPIA NÃO AUTORIZADA
UNINOVE

Rev. B

Engenharia de Avaliações e Perícias
Manutenção Predial e Avaliação de Máquinas
e Equipamentos

16/07/2011
Folha 215/424

Informações úteis
A seguir, serão fornecidas as normas técnicas e leis que norteiam estes
sistemas quanto à sua importância e manutenção e que servem de
complementação e referência para estudos mais aprofundados:


ABNT – Associação Brasileira de Normas Técnicas
 NBR 30/78 – Construção e Instalação de Elevadores
 Norma NBR 7.192/85 – Projeto, Fabricação e Instalação de
Elevadores
 Norma NM 207/99 – Elevadores Elétricos de Passageiros
 Norma NM 206/2001 – Elevadores Hidráulicos de Passageiros
 Norma NM 195/99 – Escadas Rolantes e Esteiras Rolantes
 Norma NBR 5.665/83 – Cálculo de Tráfego nos Elevadores
 Norma NM 313/2007 – Elevadores para Transporte de Pessoa
Portadora de Deficiência
 Norma NBR 10.147 – Escadas Rolantes e Esteiras Rolantes –
Inspeções e Ensaios Periódicos e de Rotina
 Norma NBR 10.982/90 – Elevadores Elétricos – Dispositivos de
Operação e Sinalização
 Norma NBR 12.892/90 – Projeto, Fabricação e Instalação de
Elevador Unifamiliar
 Norma NBR 14.712 – Elevadores Elétricos, Carga, Monta-cargas,
Elevador de maca – Requisitos de Segurança, Fabricação e
Instalação;
 NBR 9.050/2004 – Acessibilidade a Edificações, Mobiliário, Espaços
e Equipamentos Urbanos.



Legislação Municipal:
o Rio de Janeiro – Decreto-lei nº 2.743 de 07/01/99; e Lei nº 3.311 de 3
de dezembro de 2001 (Acessibilidade);
o São Paulo – Decreto-lei nº 10.348 de 04/09/98 alterada pela Lei nº
12.751 de 4 de novembro de 1998 e Lei nº 10.098 de 19/12/2000



American Society of Mechanical Engineers:
o ANSI/ASME A17.2-1985 – Inspectors Manual for Elevators and
Escalators;
o ANSI/ASME A17.1-1996 – Safety Code for Elevators and Escalators.

A Prefeitura do Município de São Paulo disponibiliza, pelo seu site, a relação
de empresas cadastradas junto ao Departamento de Controle do Uso de
Imóveis/Contru 05 para a manutenção de elevadores. Denúncias sobre falta
de segurança no funcionamento de elevadores podem ser direcionadas ao
Departamento de Controle do Uso de Imóveis/Contru 03 Denuncias localizado à Rua São Bento, 405 - 19º andar - Ed. Martinelli. – CEP: 01011000.
Elaborado por:

Analisado por:

Professor :

Marcelo Gandra Falcone

Alessandra Aparecida Vieira

Marcelo Gandra Falcone

QUANDO IMPRESSO CONSIDERAR PIRATARIA - CÓPIA NÃO AUTORIZADA
UNINOVE

Rev. B

Engenharia de Avaliações e Perícias
Manutenção Predial e Avaliação de Máquinas
e Equipamentos

16/07/2011
Folha 216/424

Perguntas mais freqüentes
Em função do mau estado, o elevador pode descer pelo poço sem controle?
R.: Mesmo em prédios residenciais de menor porte, os equipamentos possuem
uma série de dispositivos de segurança que são automaticamente acionados
quando houver uma aceleração da cabina acima do limite aceitável. É evidente
que, para os sistemas operarem adequadamente, a manutenção por empresa
responsável e a execução de testes periódicos (em alguns sistemas) são
fundamentais.
Existem riscos em viagens apenas com crianças (sozinhas)?
R.: Sim. Como dissemos anteriormente, existem pontos importantes que o
passageiro deve observar antes de entrar no elevador (desnivelamento entre o
piso da cabina e o piso do pavimento, o espaçamento entre a cabina e o piso
do pavimento, etc.) e dificilmente a criança tem este discernimento. Outro risco
a considerar é a parada imprevista do elevador e o pânico natural que isto
gera nas pessoas.
Não é perigoso permanecer dentro do elevador parado ao invés de tentar uma
saída (ser resgatada por pessoal não preparado)?
R.: Não. A grande verdade é que o risco maior existe na tentativa de resgate
sem que a pessoa esteja treinada para tal. É mais seguro, em função de todos
os dispositivos já citados, que o passageiro espere calmamente o resgate,
após ter notificado o seu enclausuramento ao zelador ou à recepção da
edificação.
Você sabia?
Que o elevador não pode ser utilizado em casos de incêndio;
Que as empresas de manutenção e conservação possuem plantão 24hs para
atendimentos de emergência e que o prazo para estes atendimentos deve
constar em contrato;
É muito perigoso permitir a entrada de água no poço do elevador, proveniente
de grandes vazamentos ou da lavagem de pavimentos, pois existem diversos
componentes eletrônicos e elétricos na cabina e no poço, que podem ser
danificados e comprometer de forma séria, a operação do sistema.

Elaborado por:

Analisado por:

Professor :

Marcelo Gandra Falcone

Alessandra Aparecida Vieira

Marcelo Gandra Falcone

QUANDO IMPRESSO CONSIDERAR PIRATARIA - CÓPIA NÃO AUTORIZADA
UNINOVE

Rev. B

Engenharia de Avaliações e Perícias
Manutenção Predial e Avaliação de Máquinas
e Equipamentos

16/07/2011
Folha 217/424

Figura 78 –Casa de Maquinas - Fotos CONTRU 2010.

Elaborado por:

Analisado por:

Professor :

Marcelo Gandra Falcone

Alessandra Aparecida Vieira

Marcelo Gandra Falcone

QUANDO IMPRESSO CONSIDERAR PIRATARIA - CÓPIA NÃO AUTORIZADA
UNINOVE

Rev. B

Engenharia de Avaliações e Perícias
Manutenção Predial e Avaliação de Máquinas
e Equipamentos

16/07/2011
Folha 218/424

9.10.12.4 Sistema de ventilação forçada
Descrição dos Sistemas
Normalmente observamos uma maior aplicação de sistemas de ventilação
forçada em edifícios comerciais, hotéis, teatros, edifícios públicos, etc..Estes
sistemas de ventilação são normalmente projetados com as seguintes
finalidades:
• Pressurização em escadarias (rota de fuga)
• Ventilação e exaustão de garagens subterrâneas
• Ventilação com a finalidade de controle de temperatura em salas de
máquinas (subestações elétricas, etc..)
Se analisarmos o grau de importância de cada uma destas instalações,
observaremos que todas têm como principal ponto de intersecção a vida
humana, seja na proteção contra a intoxicação causada pela fumaça / fogo em
um ou mais andares próximos à escadaria de emergência, seja na redução no
nível de Monóxido de Carbono e de outros poluentes em áreas de
estacionamento com pouca ventilação natural ou na manutenção de
temperaturas amenas em casas de máquinas, onde equipamentos e
instalações elétricas emanam constantemente calor para o ambiente,
incorrendo em riscos operacionais.
Antes de abordarmos o roteiro de um rápido “check up” desta modalidade de
instalações prediais, sintetizaremos abaixo os fundamentos de cada um dos
sistemas listados acima:
Finalidade dos sistemas
a) Pressurização em escadarias (rota de fuga):
Consiste em uma instalação com norma ABNT específica – NBR 14880
(Saídas de emergência em edifícios – Escadas de segurança – Controle de
fumaça por pressurização), cujo princípio de funcionamento baseia-se na
ventilação forçada do ar externo (ventiladores localizados na cobertura ou nos
subsolos) para dentro da escadaria, gerando pressão positiva, ou seja, uma
maior pressão interna (escadas) em relação ao “hall” dos andares, impedindo
assim a infiltração de fumaça para dentro da “rota de fuga”. Este sistema é
normalmente acionado durante o procedimento de operação em situações de
incêndio e consiste em um ou mais ventiladores, sua respectiva instalação
elétrica e quadro de acionamento / comando dos equipamentos, geralmente
localizado na recepção ou na central de bombeiros do condomínio.

Elaborado por:

Analisado por:

Professor :

Marcelo Gandra Falcone

Alessandra Aparecida Vieira

Marcelo Gandra Falcone

QUANDO IMPRESSO CONSIDERAR PIRATARIA - CÓPIA NÃO AUTORIZADA
UNINOVE

Rev. B

Engenharia de Avaliações e Perícias
Manutenção Predial e Avaliação de Máquinas
e Equipamentos

16/07/2011
Folha 219/424

b) Ventilação e exaustão de garagens subterrâneas:
Ao contrário do sistema de pressurização, a ventilação / exaustão de garagens
objetiva a circulação / renovação de ar externo no ambiente pouco ventilado e
com alta concentração de poluentes gerados por veículos automotivos.

Elaborado por:

Analisado por:

Professor :

Marcelo Gandra Falcone

Alessandra Aparecida Vieira

Marcelo Gandra Falcone

QUANDO IMPRESSO CONSIDERAR PIRATARIA - CÓPIA NÃO AUTORIZADA
UNINOVE

Rev. B

Engenharia de Avaliações e Perícias
Manutenção Predial e Avaliação de Máquinas
e Equipamentos

16/07/2011
Folha 220/424

Podemos ter dois princípios básicos de funcionamento para este sistema:
• Ventilação Forçada e Exaustão natural Ventilação e exaustão forçada

Este sistema pode ser operado manualmente ou através de um sistema de
automação, e geralmente, é acionado em horários de grande movimentação de
veículos. O sistema é composto por um conjunto de equipamentos (um ou mais
ventiladores), sua instalação elétrica e o painel de acionamento / comando.

c) Ventilação com a finalidade do controle de temperatura em salas de
máquinas:
Normalmente operando em subestações (cabines de entrada de energia
elétrica) ou salas de geradores de emergência, estes sistemas retiram o calor
gerado no próprio ambiente (motores, transformadores, cabos, etc), auxiliando
na manutenção de uma temperatura mais amena, evitando assim possíveis
colapsos, principalmente em componentes elétricos e motores. Costumam ser
sistemas de operação contínua em virtude do calor emanado (subestações
elétricas) ou de operação intermitente quando relacionados ao funcionamento
de algum equipamento (geradores de emergência, etc).
Principais Anomalias
• Anomalias construtivas:
 Erros de dimensionamento (projeto);
 Erros quanto ao conceito de exaustão no que tange a remoção do ar
viciado e a respectiva entrada de ar limpo no ambiente;
 Erros de instalação quanto a impossibilidade de acesso (para
manutenção) a todos os componentes do sistema e a exposição do(s)
equipamento(s) ao tempo.
 Anomalias em função da utilização:
 Operação contínua do equipamento ocasionando o desgaste
 prematuro da instalação.
Elaborado por:

Analisado por:

Professor :

Marcelo Gandra Falcone

Alessandra Aparecida Vieira

Marcelo Gandra Falcone

QUANDO IMPRESSO CONSIDERAR PIRATARIA - CÓPIA NÃO AUTORIZADA
UNINOVE

Rev. B

Engenharia de Avaliações e Perícias
Manutenção Predial e Avaliação de Máquinas
e Equipamentos

16/07/2011
Folha 221/424

Plano de Manutenção Predial
a) No equipamento:
• Verificar a fixação do equipamento;
• Efetuar a limpeza do equipamento (rotor e carcaça);
• Lubrificar mancais e rolamentos (se houver);
• Verificar o estado geral do equipamento, eliminando pontos de ferrugem e
reapertando todos os elementos de fixação;
• Verificar as condições elétricas de funcionamento (motor elétrico).
b) No quadro elétrico:
• Verificar o funcionamento de botões de acionamento, interruptores e
lâmpadas de sinalização;
• Verificar tensão e corrente elétrica do equipamento conforme procedimento
padrão técnico;
• Verificar o estado dos componentes (cabos, contatoras, fusíveis, etc.);
• Efetuar o reaperto geral;

Recomendações e orientações técnicas
Como dicas de “check up” para o condomínio, podemos sugerir as seguintes
ações periódicas:
• Efetuar testes mensais (mínimo recomendado) dos sistemas observando:
• Se todos os ventiladores estão operando;
• Se existem ruídos anormais durante a operação (chamar técnico
especializado caso isto ocorra);
• Se existem materiais obstruindo a entrada de ar de renovação e a saída
(forçada ou natural), removendo-os imediatamente;
• Se os quadros elétricos estão limpos, sem odor de queimado (isto pode
significar alta temperatura e desgaste de cabos e demais componentes), sem
sinais de queima nos cabos (alta temperatura, falta de aperto nos terminais /
manutenção), sem riscos externos tais como goteiras / infiltrações próximas e
se o quadro elétrico esta fechado (estanque) não oferecendo riscos às pessoas
que circulam no local;
• Se os funcionários do condomínio estão treinados à operar os sistemas;
• Se estas áreas consideradas técnicas (sala dos ventiladores / exaustores e
sala dos quadros elétricos) são restritas a entrada de funcionários do
condomínio / Bombeiros.
• No caso da pressurização de escadarias, favor observar capítulo específico
para itens de segurança em condomínios neste manual.

Elaborado por:

Analisado por:

Professor :

Marcelo Gandra Falcone

Alessandra Aparecida Vieira

Marcelo Gandra Falcone

QUANDO IMPRESSO CONSIDERAR PIRATARIA - CÓPIA NÃO AUTORIZADA
UNINOVE

Rev. B

Engenharia de Avaliações e Perícias
Manutenção Predial e Avaliação de Máquinas
e Equipamentos

16/07/2011
Folha 222/424

Informações úteis
a) Quanto a documentação
• Manter projetos, memoriais e atestados de funcionamento (normalmente
solicitados para a regularização do condomínio junto aos órgãos oficiais como
Corpo de Bombeiros e Prefeitura) sob a responsabilidade do administrador do
condomínio.
• Não permitir que nenhuma outra instalação descaracterize estes
sistemas sem uma prévia avaliação por um engenheiro responsável e
principalmente, sem que se faça a atualização de projeto em caso de
alteração da instalação original.
b) Normas técnicas que norteiam estes sistemas quanto a sua
importância e manutenção:
• NBR 14880 – Saídas de emergência em edifícios – Escadas de
segurança – Controle de fumaça por pressurização
• NBR 13971 – Sistemas de refrigeração, condicionamento de ar e
ventilação – Manutenção programada.
Perguntas mais freqüentes
 O equipamento pode operar 24 horas?
R.: Geralmente não. Todas as instalações que operam durante as 24hs
costumam ser projetadas com mais de um equipamento, possibilitando o
revezamento entre eles. Lembre-se que todo equipamento que opera sem
paradas sofrerá desgaste prematuro de seus componentes.
 Quando é que devo operar o sistema?
R.: Normalmente os sistemas de exaustão são projetados para operar nos
horários de maior concentração de poluentes.Como exemplo, podemos citar
estacionamentos onde os sistemas normalmente operam nas horas de “rush”;
já no caso da pressurização de escadarias, o sistema pode manter um certo
nível de pressão antes de qualquer evento extraordinário (abandono da
edificação) mas, operará com toda a sua capacidade durante o evento.
 De onde vem o cheiro de queimado?
R.: O cheiro de queimado pode ser proveniente do motor que não suporta a
carga de trabalho (operação contínua do equipamento) como também,
proveniente do quadro elétrico em função do aquecimento interno excessivo
(falta de ventilação suficiente no local) e desgaste dos componentes (queima
de cabos e terminais).O aquecimento excessivo também pode ser ocasionado
pela falta de manutenção (reaperto) e do conseqüente mau contato.
Você sabia? Que não podemos obstruir entradas ou saídas de ar para não
prejudicar a operação do sistema? Isto reduz a vazão de ar exaurida ou
insuflada.
Elaborado por:

Analisado por:

Professor :

Marcelo Gandra Falcone

Alessandra Aparecida Vieira

Marcelo Gandra Falcone

QUANDO IMPRESSO CONSIDERAR PIRATARIA - CÓPIA NÃO AUTORIZADA
UNINOVE

Rev. B

Engenharia de Avaliações e Perícias
Manutenção Predial e Avaliação de Máquinas
e Equipamentos

16/07/2011
Folha 223/424

9.10.12.5 Sistema de Ar Condicionado
Descrição e finalidade do sistema

O sistema de ar condicionado consiste em um processo de tratamento e
controle simultâneo da temperatura, umidade, pureza e movimentação do ar,
conforme as necessidades do ambiente que se deseja climatizar. Esse
processo de tratamento é obtido pela adição de ar externo limpo para a
renovação do ar que retorna ao ambiente climatizado, sua filtragem (controle
da pureza), seu resfriamento por serpentinas internas (controle de temperatura
e umidade). A sua distribuição no ambiente pode ser efetuada por lâminas
direcionadoras do próprio aparelho (condicionadores de janela, splits), ou por
meio de uma rede de dutos e difusores para sistemas centrais (selfs ou fancoils). Durante o processo de resfriamento, parte do vapor de água contido no
ar se condensa no sistema, facilitando a formação de focos de contaminação.
A portaria 3.523 do Ministério da Saúde, a Resolução nº 09/2003 da ANVISA e
a Norma ABNT NBR 6.401 têm por objetivo estabelecer parâmetros para
garantir a qualidade do ar de interiores, pelo seu tratamento e pela renovação
constante de parte do ar “viciado” que retorna do ambiente climatizado.
Segundo a portaria, o sistema de ar condicionado deve garantir a renovação de
no mínimo 27 m3/h/pessoa. O sistema de ar condicionado contempla essa
troca, admitindo a igual quantidade de ar externo limpo, que se mistura ao ar
ambiente para ser filtrado, resfriado e distribuído.

Os proprietários locatários ou prepostos de estabelecimentos com ambientes
climatizados com capacidade igual ou superior a 5 TR (15.000 kcal/h ou
60.000Btu/h) estão obrigados a ter um plano de manutenção elaborado e
acompanhado por um engenheiro responsável, e também a executar,
dentro de uma freqüência definida, as análises de qualidade do ar interno por
meio de laboratórios especializados.
Elaborado por:

Analisado por:

Professor :

Marcelo Gandra Falcone

Alessandra Aparecida Vieira

Marcelo Gandra Falcone

QUANDO IMPRESSO CONSIDERAR PIRATARIA - CÓPIA NÃO AUTORIZADA
UNINOVE

Rev. B

Engenharia de Avaliações e Perícias
Manutenção Predial e Avaliação de Máquinas
e Equipamentos

16/07/2011
Folha 224/424

Na figura abaixo , podemos observar a sequência de tratamento, onde o ar é
primeiramente filtrado, depois resfriado e/ou desumidificado e finalmente
devolvido ao ambiente por ventilador, rede de dutos, grelhas etc.
Dentre os equipamentos existentes, podemos destacar:


Condicionador de janela: o aparelho se compõe de dois compartimentos. O
primeiro situado no lado do ambiente condicionado, contém uma serpentina
evaporadora para resfriamento, um filtro que purifica e um ventilador que
movimenta o ar. O segundo compartimento, situado no lado externo,
contém uma serpentina condensadora que rejeita o calor pára o ar externo,
um compressor hermético (parecido com os de geladeira) que faz circular o
fluído refrigerante, um tubo capilar e um ventilador para movimentar o ar
externo que esfria a serpentina condensadora.



Split: em princípio, o processo de refrigeração é o mesmo, sendo que neste
modelo a serpentina evaporadora é instalada no ambiente a ser refrigerado
e o compartimento que contém o compressor e a serpentina condensadora
está instalado remotamente em ambiente externo. Nesse caso, deve-se
estabelecer uma condição para a renovação do ar, pois esse sistema não
contempla essa necessidade.

FIGURA 2 – Esquema de funcionamento (split System)


Self Contained: é um equipamento de maior porte, para refrigeração de
grandes áreas, geralmente operando como uma pequena central,
distribuindo ar refrigerado por meio de dutos para diversos ambientes. O
retorno é efetuado por dutos ou diretamente para a casa de máquinas por
meio de venezianas instaladas em sua porta ou parede. As serpentinas
condensadoras podem ser esfriadas a ar ou a água.

Elaborado por:

Analisado por:

Professor :

Marcelo Gandra Falcone

Alessandra Aparecida Vieira

Marcelo Gandra Falcone

QUANDO IMPRESSO CONSIDERAR PIRATARIA - CÓPIA NÃO AUTORIZADA
UNINOVE

Engenharia de Avaliações e Perícias
Manutenção Predial e Avaliação de Máquinas
e Equipamentos



Rev. B
16/07/2011
Folha 225/424

Central de água gelada ou sistemas de refrigeração por água gelada: esse
sistema é adotado para instalações com grande capacidade/demanda de
refrigeração e consiste em uma central de água gelada, composta por um
resfriador de líquidos (chiller), bombas para a circulação de água gelada
aos condicionadores posicionados nos andares ou próximos às áreas
condicionadas. O sistema de condensação do chiller pode ser arrefecido
por ar ou água. O arrefecimento a ar é obtido pela ventilação mecânica
forçada com ventiladores e a arrefecimento a água é obtido pela circulação
de água esfriada em torres e conduzidas por bombas de condensação.
Nesse sistema, o condicionador de ar resfria o ar ambiente utilizando-se da
troca de calor entre a água gelada que circula em sua serpentina e o ar
ambiente que passa por meio dela (condicionador tipo fan-coil).

Em sistemas de grande porte, a automação é necessária para se obter um bom
funcionamento.
As centrais de água gelada ainda podem contemplar tanques de acumulação
de gelo ou de água gelada denominados termoacumuladores, que operam com
grandes “pulmões” de energia térmica, para uso em horários em que o custo da
energia elétrica é alto e se torna interessante não operar os resfriadores de
líquido (chillers ou centrífugas) a plena carga, diminuindo o custo da operação.
Conforme a ABNT NBR 6.402, as faixas confortáveis e saudáveis de
temperatura e umidade do ar para o ambiente ocupado é de:



Verão: de 24ºC a 26ºC de temperatura e de 40% a 60% de umidade relativa
do ar;
Inverno: de 20ºC a 22ºC de temperatura e de 35% a 65% de umidade
relativa do ar.

Essas faixas de temperatura podem variar de acordo com a utilização/tipo de
ocupação do ambiente condicionado, como por exemplo, em museus e galerias
de arte, onde se recomenda a faixa entre 20ºC e 22ºC (conforme a citada
norma da ABNT).
A pureza do ar é conseguida com filtros de ar e a sua distribuição no ambiente
deve ser a mais homogênea possível, evitando assim a existência de pontos
mais fracos ou mais quentes em um mesmo local de trabalho.
Não se deve lançar o ar insuflado diretamente sobre as pessoas, e sim acima
de suas cabeças, pois o ar se encontra a uma temperatura e umidade relativa
alteradas.
Por essas razões, ao se instalar um aparelho de janela, a melhor posição não é
no parapeito da janela, e sim na parte superior, com as aletas da grelha de
insuflamento direcionadas para cima.
Elaborado por:

Analisado por:

Professor :

Marcelo Gandra Falcone

Alessandra Aparecida Vieira

Marcelo Gandra Falcone

QUANDO IMPRESSO CONSIDERAR PIRATARIA - CÓPIA NÃO AUTORIZADA
UNINOVE

Rev. B

Engenharia de Avaliações e Perícias
Manutenção Predial e Avaliação de Máquinas
e Equipamentos

16/07/2011
Folha 226/424

No caso de ar condicionado central, o ar deve ser insuflado também de
maneira indireta.
Em sistemas de ar condicionado central, que operem com água gelada e água
de condensação, torna-se importante a análise do tratamento químico dessas
águas com o objetivo de preservar a instalação (reservatórios e tubulações) e o
rendimento do sistema, evitando a incrustação ou depósito de algas, sujeiras
em paredes de tubos ou trocadores de calor. Recomenda-se também a limpeza
periódica das torres de resfriamento e um programa de purga de sua bacia,
removendo sujeiras depositadas em seu fundo.
Principais anomalias:
 Temperatura não ajustada ao fim a que se destina e com os níveis fora do
especificado pela norma da ABNT.
 Fluxo de ar diretamente sobre os corpos, devendo-se ajustar as lâminas
direcionadoras de ar que ficam nos equipamentos condicionadores de
menor porte (aparelhos de janela e splits).
 Poeira lançada pelo ar condicionado, devendo-se verificar a limpeza dos
filtros de ar, e se o problema ainda persistir deverá ser avaliado o estado de
limpeza de dutos e grelhas/difusores.
 A existência de ruídos nos condicionadores.
 Utilização de salas de máquinas para o armazenamento de produtos de
limpeza ou qualquer outro fim.
Recomendações e orientações técnicas:
 Limpar e pintar com tinta adequada a bandeja de condensados dos
condicionadores, avaliando a necessidade de tratamento com produtos
bactericidas, lembrando que, conforme previsto na legislação, todos os
produtos utilizados para a limpeza e tratamento de condicionadores de ar
deverão ter o seu registro e aprovação junto ao Ministério da Saúde.
 O condicionador de janela deve ser inclinado com sua parte mais baixa no
lado do ar externo, para que o condensado não reflua para o ambiente
condicionado. A sua drenagem deve ser feita com mangueira, de tal forma
que não respingue água nos transeuntes.
 Dependendo da condição ou região da cidade onde estiver
localizado/instalado o condicionador de ar, deverá ser definida uma rotina
de inspeção periódica mais intensa sobre os filtros de ar, garantindo a sua
limpeza/troca e a conseqüente melhor qualidade do ar ambiente (observar a
especificação do grau de filtragem adequado).
 Os dutos devem ser dotados de portas de inspeção em locais convenientes
para facilitar a limpeza, que pode ser feita por escovação mecânica ou
sopro de ar comprimido. Existem firmas especializadas que utilizam robôs
controlados e monitorados a distância (inclusive com visualização).
 Outros elementos que devem ser limpos são os trocadores adequado. Isto é
feito por firmas especializadas. Esse tratamento é para evitar a proliferação
Elaborado por:

Analisado por:

Professor :

Marcelo Gandra Falcone

Alessandra Aparecida Vieira

Marcelo Gandra Falcone

QUANDO IMPRESSO CONSIDERAR PIRATARIA - CÓPIA NÃO AUTORIZADA
UNINOVE

Engenharia de Avaliações e Perícias
Manutenção Predial e Avaliação de Máquinas
e Equipamentos





Rev. B
16/07/2011
Folha 227/424

de algas, fungos, bactérias e protozoários, bem como a incrustação e
processos corrosivos nas tubulações e equipamentos do sistema.
Ao se instalar um condicionador, mesmo o de janela, deve-se cuidado para
que o circuito, provocando aquecimento de fiação e deterioração do
isolamento. Vale lembrar que os incêndios dos edifícios Joelma e Center 3,
ambos na cidade de São Paulo, foram ocasionados por sobrecarga da rede
elétrica devido à instalação de condicionadores de janela que não tinham
sido previstos no projeto original.
Para que não haja focos freqüentes de gripes ou rinites alérgicas, deve-se
verificar inicialmente a incidência direta do fluxo de ar sobre os ocupantes
(condições de temperatura e distribuição) e também a qualidade do ar
condicionado na sala pela análise laboratorial específica, conforme previsto
na portaria do Ministério da Saúde.

Você sabia ?
A medida que os edifícios foram crescendo em tamanho e tiveram seus vãos
centrais eliminados, foi criado um meio ambiente propício a problemas pelo
grande volume de ar contido. Equipamentos utilizados para fazer funcionar
esses edifícios criaram problemas. A necessidade de sucção de ar externo,
aquecimento, resfriamento, distribuição e eliminação dos subprodutos
provenientes da presença humana e dos equipamentos criaram a necessidade
de instalação de grande número de dutos através de todas as estruturas dos
edifícios, portanto os prédios com janelas que se podem abrir e o aquecimento
do vapor de água foram substituídos por estruturas com ductos de ar que eram
resfriados ou aquecidos por um equipamento centralizado.. A idéia principal
das primeiras construções não era eliminar a poluição interna, mas sim
prevenir a infiltração da poluição externa e controlar o clima interno pela
manutenção de uma temperatura adequada, purificação do ar proveniente da
sucção externa e sua distribuição no edifício.
Elaborado por:

Analisado por:

Professor :

Marcelo Gandra Falcone

Alessandra Aparecida Vieira

Marcelo Gandra Falcone

QUANDO IMPRESSO CONSIDERAR PIRATARIA - CÓPIA NÃO AUTORIZADA
UNINOVE

Rev. B

Engenharia de Avaliações e Perícias
Manutenção Predial e Avaliação de Máquinas
e Equipamentos

16/07/2011
Folha 228/424

Doenças relacionadas às edificações, como absenteísmo, insalubridade, perda
na qualidade de vida e na capacidade produtiva dos usuários tem sido
freqüentemente associada com o tipo e uso das estruturas que as pessoas
ocupam e seus costumes. Comida, bebida, excreções do organismo, e outras
substâncias orgânicas propiciam o desenvolvimento de microorganismos. Uma
grande diversidade de equipamentos foi introduzida, entre os quais as
fotocopiadoras, luminárias. certos tipos de ar condicionado e novos materiais
sintéticos para cobrir pisos e paredes e produzir mobiliário em geral. Para
limpeza destas grandes superfícies de material sintético (laminados, moveis,
carpetes, etc) utilizam-se produtos de limpeza de porte industrial, que podem
deixar resíduos tóxicos. Filtros são usados para purificar o ar que circula no
ambiente interno e em conjunto com os sistemas de dutos converteram-se em
criadouros de vários tipos de microorganismos (como também os próprios
carpetes). Em resumo, os edifícios modernos fechados propiciaram condições
para criar um nicho ecológico complexo que se tornou uma fonte de doenças
para o homem.
Esses edifícios são comumente referidos como edifícios doentes e a epidemia
de queixas de seus ocupantes foi definida pela Organização Mundial da Saúde
como "Síndrome do Edifício Doente" (WHO42,1983). As causas da síndrome
do edifício doente não são identificadas com freqüência entretanto, os sintomas
costumam ser resolvidos aumentando o suprimento de ar fresco. Os resultados
de 203 investigações feitas pela NIOSHI, até o fim de 1983, concluem:













40,3% à ventilação inadequada(p. ex., alta proporção de ar reciclado ou
fluxo inadequado, sintomas foram atribuídos à ventilação inadequada,
pouca circulação do ar, inadequado suprimento de ar fresco e precário
controle da umidade e temperatura),
17,7% dos sintomas foram atribuídos à contaminação do ar pelo meio
interno (p. ex., substâncias de produtos de limpeza ou fotocopiadoras),
10,3% à contaminação do ar pelo meio externo (p. ex., localização errônea
dos funis de entrada de ar permitiram a aspiração de fumaça de gasolina de
garagens ou estacionamentos de ônibus),
4,4% à umidade,
3,4% à contaminação por materiais de construção (p. ex., gás de
formaldeído proveniente de divisórias e móveis de aglomerados, colas e
resinas de carpete),
3% à pneumonite hipersensitiva (freqüentemente causada pelo
desenvolvimento de microorganismos em umidificadores),
2% à fumaça de cigarro,
1,0% ao barulho e iluminação.
Os 10% dos estudos restantes não identificaram uma causa específica para
os sintomas.

Elaborado por:

Analisado por:

Professor :

Marcelo Gandra Falcone

Alessandra Aparecida Vieira

Marcelo Gandra Falcone

QUANDO IMPRESSO CONSIDERAR PIRATARIA - CÓPIA NÃO AUTORIZADA
UNINOVE

Rev. B

Engenharia de Avaliações e Perícias
Manutenção Predial e Avaliação de Máquinas
e Equipamentos

16/07/2011
Folha 229/424

9.11.5 SISTEMA DE AUTOMAÇÃO PREDIAL
Introdução
As mudanças na política econômica do país a partir dos anos 1990, com a
abertura política, processo de globalização, avanço dos programas de
privatização, advento dos setores siderúrgico, petroquímico, informática,
serviços públicos, telecomunicações, eletricidade, transporte e saneamento,
aumentaram o interesse pelo capital estrangeiro no país, e consequentemente,
a demanda por espaços de escritórios de alto padrão nos grandes centros
urbanos.
Essa demanda, em sua maioria composta por empresas multinacionais, aliada
à abertura do mercado à importação de novas tecnologias, de projetos
inovadores para os padrões nacionais, arrojados em sua arquitetura, mais
modernos em sua concepção tecnológica e, sobretudo, inteligentes.
Existem diversos nomes e formas de se referir a um “Sistema de Automação
Predial”. Em algumas oportunidades poderá ser encontrado na literatura
especializada com o nome “Sistema de supervisão Predial”; em outros como
“Sistema de Gerenciamento Predial”. Algumas empresas, com cultura
americana, adotam o nome em inglês de “Building Management System”.
Iremos utilizar a expressão Sistema de Automação Predial.
O segmento da Construção Civil Brasileiro ou Internacional, praticamente com
unanimidade atribui a expressão “Edifício Inteligente – EI” ou “Edifícios de Alta
Tecnologia – EAT” aos edifícios que possuem “Sistema de Automação Predial”.
Por sua vez, a partir do momento em que começaram a surgir edificações no
Brasil, com complexos Sistemas de Automação Predial, o mercado imobiliário
brasileiro rapidamente adequou os critérios e metodologias de avaliação, de
modo que, atualmente, os edifícios que possuem Sistema de Automação
Predial ocupam um lugar de destaque no contexto imobiliário.
Tanto quanto a existência ou não de sistema de ar condicionado central, os
edifícios que têm sistemas automatizados possuem comparativamente custos
operacionais mais baixos do que os demais, oferecendo dessa forma ao
investigador a possibilidade de receber um custo maior sobre a locação dos
espaços de escritório.
Mas, na prática, é difícil entender que um edifício possa “ser inteligente”. No
meu modesto ponto de vista, sempre abominei essa expressão. Tenho o
entendimento que “edifício inteligente” é aquele que possui os recursos
tecnológicos para que possa ser gerenciado de forma inteligente. Ao longo de
minha carreira profissional nessa área, nunca encontrei limitação de recursos
tecnológicos para poder gerir cada vez melhor os recursos que foram
Elaborado por:

Analisado por:

Professor :

Marcelo Gandra Falcone

Alessandra Aparecida Vieira

Marcelo Gandra Falcone

QUANDO IMPRESSO CONSIDERAR PIRATARIA - CÓPIA NÃO AUTORIZADA
UNINOVE

Rev. B

Engenharia de Avaliações e Perícias
Manutenção Predial e Avaliação de Máquinas
e Equipamentos

16/07/2011
Folha 230/424

designados à minha pessoa. No entanto, é necessário possuir o interesse em
utilizá-los; é necessário entender o seu funcionamento bem como a sua função
dentro do contexto. Somente o tempo de convivência com a própria instalação
oferece essa possibilidade. A tecnologia empregada nos Sistemas de
Automação Predial é “pura” engenharia. Somente as pessoas que detêm
conhecimento de engenharia ou conhecimento técnico é que podem extrair das
instalações automatizadas o seu melhor rendimento, eficiência e conservação.
Dessa forma, antes de apresentar uma visão geral do Sistema de Automação
Predial, vamos gastar um tempo para identificar o contexto, a tecnologia atual e
as tendências do segmento.
Determinação do “contexto” a ser abordado
Antes de prosseguirmos, é necessário possuir o conhecimento adequado dos
conceitos que serão abordados ao longo deste capítulo, razão pela qual iremos
examinar a seguir algumas definições importantes.
O que é um edifício Inteligente ou um Edifício com Alta Tecnologia?
O conceito de Edifício Inteligente é proveniente do segmento da Arquitetura.
Porém, entre todas as definições que encontrei sobre o que é um Edifício
Inteligente, a que considero mais adequada é feita pelo “Inteligente Buildings
Institute (IBI) – Washington DC – EUA”:
“Edifícios que disponibilizam um ambiente produtivo e econômico por
intermédio da otimização de quatro recursos básicos:






Estrutura: vigas, lajes; cabos de energia elétrica,
equipamentos etc.;
Sistemas: sistemas e subsistemas quais sejam:
ventilação mecânica, ar condicionado, elevadores,
iluminação, circuito fechado de televisão, controle de
acesso etc.;
Serviços e Gerenciamento: manutenção predial,
conservação e limpeza etc.;
Inter-relação entre os três pontos relacionados acima.
...”

Os Edifícios “inteligentes” são aqueles que possuem instrumentos para
racionalizar os recursos energéticos, os quais, sendo eficientemente utilizados,
irão incrementar a eficiência operacional e controle de todos os subsistemas.
Atualmente, as tecnologias dos Sistemas de Automação Predial permitem que
todos os subsistemas e seus respectivos equipamentos economizem energia
elétrica, tenham um funcionamento seguro e confiável e principalmente
Elaborado por:

Analisado por:

Professor :

Marcelo Gandra Falcone

Alessandra Aparecida Vieira

Marcelo Gandra Falcone

QUANDO IMPRESSO CONSIDERAR PIRATARIA - CÓPIA NÃO AUTORIZADA
UNINOVE

Rev. B

Engenharia de Avaliações e Perícias
Manutenção Predial e Avaliação de Máquinas
e Equipamentos

16/07/2011
Folha 231/424

contribuam para a redução dos custos fixos. Subsistemas como iluminação
podem ser controlados automaticamente, com horários pré-estabelecidos para
ativação e desativação. Dessa forma, os consumos de água e energia elétrica
passam a ser monitorados, evitando-se o desperdício e as multas. O software
de supervisão predial é a principal ferramenta gerencial, permitindo ainda o
monitoramento de imagens, controle de acesso, prevenção de incêndio,
detecção de intrusão e acionamento de alarmes.
Um edifício inteligente deverá conter tecnologia abrangente em
microprocessadores para controlar, monitorar e operar os diversos sistemas e
subsistemas tais como: iluminação, calefação (aquecimento), ventilação e ar
condicionado, energia elétrica, transporte vertical, sistema de proteção contra
incêndio, segurança etc. Todos esses equipamentos dependem da presença
de sofisticados sistemas de telecomunicação para voz, dados e transmissão de
vídeo/ imagens.
As características de “inteligência” podem ser encontradas primeiramente nos
ambientes de trabalho. Está provado que Edifícios Inteligentes possuem baixos
custos operacionais e que certamente contribuem para a produtividade dos
funcionários das empresas usuárias. Estudos demonstram que os funcionários
preferem estações de trabalho que possuem um melhor controle do ambiente
como um todo (exemplo: iluminação, ar condicionado, controle de acesso,
segurança, transporte vertical rápido e seguro etc.). Existem mais exemplos
que demonstram que tanto a vida em casa como no trabalho se tornam mais
fáceis, práticas, econômicas e amistosas quando sistemas de automação
assumem o controle de tarefas que as pessoas não necessitam mais executar.
Dessa forma, as pessoas gradativamente têm tido a possibilidade de direcionar
o seu tempo para tarefas mais confortáveis, com mais eficiência, quer seja no
trabalho ou no convívio familiar ou lazer. O sistema de gerenciamento de
energia elétrica, por exemplo, pode ser programado para operar
automaticamente dispositivos com baixo custo energético, com preferências
individuais previamente configuradas (exemplo: temperatura do ar
condicionado). O consumo de energia elétrica pode ser reduzido em até 50%
(estimativa) quando o sistema de automação automaticamente desliga a
iluminação, reduz a refrigeração ou aquecimento quando o edifício não está
sendo mais ocupado, independentemente do horário ou dia da semana.
Os edifícios verdadeiramente integrados, inteligentes, possuem alguns
aspectos difíceis se não praticamente impossíveis de integrar: tratam-se dos
aspectos difíceis se não praticamente impossíveis de integrar: tratam-se dos
dispositivos de controle que não foram concebidos para funcionarem na
mesma rede lógica ou como mesmo protocolo. Entretanto, a adoção difundida
do protocolo de comunicação “Lon Works” (www.echelon.com), pelas indústrias
do segmento de automação predial, está criando um padrão principal/ mundial
de dispositivos de monitoramento e controle, que possuem interface lógica de
comunicação. Dessa forma, tem sido possível integrá-los em todos os
Elaborado por:

Analisado por:

Professor :

Marcelo Gandra Falcone

Alessandra Aparecida Vieira

Marcelo Gandra Falcone

QUANDO IMPRESSO CONSIDERAR PIRATARIA - CÓPIA NÃO AUTORIZADA
UNINOVE

Rev. B

Engenharia de Avaliações e Perícias
Manutenção Predial e Avaliação de Máquinas
e Equipamentos

16/07/2011
Folha 232/424

segmentos, como por exemplo: industrial, residencial, predial, transportes etc.
Com a plataforma “LonWorks”, os dispositivos dos diversos fabricantes podem
operar em conjunto Omo parte de uma única rede integrada. Os dispositivos de
segurança que utilizam tecnologia “LonWorks” podem detectar a posição dos
usuários em um edifício e compartilhar essas informações com o sistema de
iluminação, ar condicionado ou os demais sistemas e subsistemas. A troca de
informação entre os subsistemas de diversos fabricantes ocorre sem a
necessidade de adaptações ou integrações complexas, reduzindo desta forma
os custos usuais associados com a interconexão dos sistemas proprietários. A
terminologia “sistema proprietário”, apesar de ter sido amplamente utilizada/
instalada, possui a tendência de redução ou extinção gradativa ao longo do
tempo; estão sendo substituídas por sistemas de protocolo aberto “LonWorks”
de comunicação. Essa tendência de mercado fará com que os sistemas
tenham um custo de implantação mais baixo e uma melhor eficiência
operacional em um futuro próximo. O “protocolo proprietário” torna o Cliente
cativo a um determinado fabricante. Para exemplificar poderíamos citar a
questão do controle de acesso. Muitos edifícios em São Paulo nem ao menos
sabem utilizar protocolo fechado em seu sistema de controle de acesso. Com a
necessidade de comprar um crachá para o controle de acesso é que percebem
que são obrigados a comprar do mesmo fabricante do sistema. Nem sempre os
preços são acessíveis, ainda mais quando estivermos tratando de um lote de
1.000 a 2.000 crachás. A mesma situação pode ocorrer com as leitoras dos
referidos crachás ou com o próprio software de controle de acesso. Ainda
assim, comparativamente, o sistema de acesso costuma ser o mais barato
entre os subsistemas integrados no Sistema de Automação Predial.
Em uma rede de “LonWorks”, nenhum controle ou arquitetura “principalescravo” será necessária. Os dispositivos inteligentes do controle comunicamse com um protocolo comum a todos. Cada “nó” na rede contém a inteligência
“embarcada” que executa o protocolo e executa as funções de controle que
foram solicitadas. Além disso, cada ponto central de conexão (nó) possui a
condição física de ser acoplado ao “microcontrolador” do “nó”, com o meio de
comunicações. Um “nó” típico em uma rede do controle de LonWorks executa
uma tarefa simples. Os dispositivos “microcontroladores”, tais como sensores
de proximidade, interruptores, detectores do movimento, relés, movimentações
do motor e instrumentos, podem todos ser “nós” na rede; ou seja; cada um
desses equipamentos possui a capacidade de se comunicar/ interagir com os
demais dispositivos da rede. A rede como um todo executa uma aplicação
complexa do controle, tal como funcionar uma linha de produção ou
automatizar um edifício. Conectar estes dispositivos à internet certamente será,
e em alguns casos já é, a próxima etapa da tecnologia de automação mundial.
A internet será certamente dominada por dispositivos conectados. Para cada
computador que nós interagimos diariamente em nossas vidas, diretamente ou
indiretamente, com dezenas de milhares de dispositivos, tais como
interruptores, sensores de movimento, válvulas, relés, máquinas de lavagem e
refrigeradores, permitirá que esses bilhões de dispositivos conectados à
Elaborado por:

Analisado por:

Professor :

Marcelo Gandra Falcone

Alessandra Aparecida Vieira

Marcelo Gandra Falcone

QUANDO IMPRESSO CONSIDERAR PIRATARIA - CÓPIA NÃO AUTORIZADA
UNINOVE

Rev. B

Engenharia de Avaliações e Perícias
Manutenção Predial e Avaliação de Máquinas
e Equipamentos

16/07/2011
Folha 233/424

internet, possam gerar novas aplicações, mais distantes e mais poderosas do
que as aplicações valiosas que nós vemos hoje em dia ao nosso redor. A
internet de hoje será transformada.
Independente do protocolo de comunicação utilizado, sempre haverá uma
palavra que acompanhará a existência dos Sistemas de Automação Predial.
Essa palavra, apesar de muito conhecida pelas Incorporadoras ou
Construtoras, nem sempre é tratada de forma correta. Trata-se da expressão
“comissionamento”. O comissionamento propriamente dito nada mais é do que,
após instalar e integrar todos os sistemas e subsistemas de automação em um
edifício comercial, por exemplo, testar o seu funcionamento um a um,
configurar cada equipamento ou sensor a operar dentro dos parâmetros
estipulados em projeto. Um comissionamento malfeito fará com que o sistema
de automação predial seja subutilizado. Poderá certamente incorrer em
pagamento de multas, como por exemplo, ultrapassagem da demanda
contratada de energia elétrica. Também poderá ocorrer a drenagem completa
dos reservatórios de água, causando grande prejuízo financeiro. O exemplo
clássico de um comissionamento mal-executado seria a questão dos controles
do sistema de ar condicionado. Lembramos que o sistema de ar condicionado
e seus respectivos controles individuais é o único que interfere diretamente na
sensação de conforte das pessoas. Mais adiante deste capítulo iremos retornar
a esse ponto. Em outras palavras, um sistema de automação do sistema de ar
condicionado poderá fazer com o ar seja fechado quando solicitada sua
abertura (sistema VAV com atuador invertido; ou sensor de temperatura do
ambiente descalibrado). Podemos observar que os danos à “operação” podem
ser irreversíveis quanto à “satisfação do usuário” final. “Muitas vezes ocorre
frustração irreversível pela difusão errada do conceito Edifício Inteligente” e
também pela falta de conhecimento das pessoas quanto às limitações que todo
Sistema de Automação Predial possui. Já o correto conhecimento da
Automação Predial resulta em “prazer” e reconhecimento das melhorias que
causam ao ambiente coletivo.

Comissionamento – definição
O comissionamento consiste no esforço conjunto do projetista e do Arquiteto do
Edifício, da Construtora e do Integrador responsável pela instalação do Sistema
de Automação Predial e de todos os Fabricantes dos subsistemas, no sentido
de assegurar que todo o equipamento e sistemas mecânicos e elétricos
estejam completamente instalados e corretamente integrados para a operação
eficiente do Edifício. O trabalho de comissionamento começará somente depois
que todos os subsistemas estejam em funcionamento. Terminará quando todos
os testes de todos os sistemas tenham sido realizados e certificados por todos
os envolvidos descritos acima.

Elaborado por:

Analisado por:

Professor :

Marcelo Gandra Falcone

Alessandra Aparecida Vieira

Marcelo Gandra Falcone

QUANDO IMPRESSO CONSIDERAR PIRATARIA - CÓPIA NÃO AUTORIZADA
UNINOVE

Rev. B

Engenharia de Avaliações e Perícias
Manutenção Predial e Avaliação de Máquinas
e Equipamentos

16/07/2011
Folha 234/424

Objetivos
Este item também objetiva a abordagem dos principais aspectos relacionados
ao Sistema de Automação Predial no que se diz respeito a sua estrutura
padrão, utilização e subutilização, cuidados a serem observados,
comissionamento etc. Tenta-se demonstrar de forma geral uma visão “macro”
da arquitetura padrão/ ideal de um Sistema de Automação Predial.
Principais conceitos
O correto entendimento sobre Sistema de Automação Predial é: obter por
intermédio de recursos tecnológicos, conforto e satisfação do usuário final com
a utilização otimizada dos recursos disponíveis, principalmente energia elétrica,
bem como agregar confiabilidade e qualidade aos serviços prestados, como
por exemplo, o controle do sistema de ar condicionado.
O gráfico a seguir demonstra o custo tarifário de energia elétrica do Brasil em
comparação com diversos outros países do mundo.

Elaborado por:

Analisado por:

Professor :

Marcelo Gandra Falcone

Alessandra Aparecida Vieira

Marcelo Gandra Falcone

QUANDO IMPRESSO CONSIDERAR PIRATARIA - CÓPIA NÃO AUTORIZADA
UNINOVE

Rev. B

Engenharia de Avaliações e Perícias
Manutenção Predial e Avaliação de Máquinas
e Equipamentos

16/07/2011
Folha 235/424

Outro benefício direto que o Sistema de Automação Predial ofereceu foi a
flexibilidade arquitetônica de criação dos edifícios, visto que os arquitetos
puderam lançar suas criações com respaldo em conforto. Como exemplo,
pode-se destacar os edifícios que possuem “pele de vidro” e controle de ar
condicionado periférico próximos às fachadas.
Layouts mais agressivos e repletos de interferência também puderam ser
concebidos graças a flexibilidade dos sistemas de controle de ar condicionado.
Quanto aos elevadores, por exemplo: o que dizer quando um elevador possui
sensor de peso na cabine e este, quando lotado, avisa o elevador mais próximo
para atender ao andar anterior? Ou ainda programar o sistema de
gerenciamento dos elevadores a fazer o seguinte: por favor, elevadores, a
partir das 8:00 horas da manhã, ao irem do térreo para os andares do edifício,
retornarem ao térreo, mesmo que vazio, pois diversas pessoas estarão
chagando ao edifício e irão precisar dos serviços de vocês. Trata-se da
programação de subida. Há também a de descida e muitas outras.

Funções de um sistema de supervisão predial
O sistema de Automação Predial permite, entre outras funções, extrair as
seguintes informações:
Alarmes: uma vez que tenha sido verificada no controlador alguma anomalia no
processo sob controle, anomalia esta que não tenha sido corrigida de forma
automática pelo próprio Sistema de Automação Predial, o controlador deve
evitar, por intermédio da rede lógica de comunicação, para o computador
central, a informação correta, a qual deverá ser analisada pelo software da
Automação Predial, resultando na emissão de um alarme, que deverá ser
levado ao conhecimento do Operador do Sistema, que tomará as ações
necessárias objetivando o pronto restabelecimento da funcionalidade. A
mensagem é levada ao Operador por intermédio da interface gráfica ou
recursos audiovisuais que o Sistema de Automação possui. Tal alarme deverá
ser interpretado pelo Operador e poderá resultar na emissão de uma ordem de
Serviço Corretiva a ser transmitida posteriormente para a equipe de
manutenção predial ou para outros recursos que possam mitigar o problema
apresentado, incluindo até mesmo o fabricante ou Integrados do Sistema de
Automação Predial.
Outro fator que deve ser mencionado é que o Sistema de Automação Predial
possui diversos níveis de operação, todos configurados para os diversos níveis
técnicos de pessoas que poderão ter acesso ao Sistema. Senhas de níveis de
acesso permitem ou restrigem alterações nas principais funções e
configurações do Sistema de Automação Predial, exatamente pelo fato de que
a operação indevida pode causar sérios danos aos equipamentos e gerar
Elaborado por:

Analisado por:

Professor :

Marcelo Gandra Falcone

Alessandra Aparecida Vieira

Marcelo Gandra Falcone

QUANDO IMPRESSO CONSIDERAR PIRATARIA - CÓPIA NÃO AUTORIZADA
UNINOVE

Rev. B

Engenharia de Avaliações e Perícias
Manutenção Predial e Avaliação de Máquinas
e Equipamentos

16/07/2011
Folha 236/424

problemas ainda maiores. A correta determinação desses níveis de acesso é
uma função importante que deve sempre ser utilizada. Seu correto uso
certamente irá minimizar perda de informações vitais e comprometimento
operacional.
O Sistema de Automação Predial permite que o “Status” dos subsistemas seja
a qualquer momento verificado quanto a, por exemplo, o estado da corrente do
funcionamento de um equipamento, sua freqüência e/ ou temperatura
instantâneas, ou ainda: pressões de entrada e saída da água gelada do chiller,
identificando-se as informações apresentadas e confrontando-as com os
parâmetros estabelecidos no próprio sistema. A operação eficiente é aquela
que estabelece parâmetros comparativos de avaliação.
Outro exemplo a ser mencionado seria a temperatura de um ambiente de
escritório em comparação com a temperatura pré-estabelecida. Estando a
temperatura instantânea de um ambiente dentro da faixa pré-estabelecida
(“set-point”), não haverá alarme; estando acima ou abaixo do parâmetro
estabelecido, haverá um alarme, indicando que alguma ação deve ser tomada.
O Operador do Sistema poderá ter outras informações relevantes na tela a sua
frente, quais sejam:





Modulação da válvula duas vias do fan-coil;
Temperatura de água gelada que entra e sai do fancoil;
Status de funcionamento do motor do ventilador do
fan-coil;
Caso o sistema possua a capacitação de operar com
volume de ar variável, a freqüência de funcionamento
do variador de freqüência etc.

Enfim, muitas outras informações úteis poderiam ser utilizadas, desde que
corretamente avaliadas. Certamente a correta avaliação irá resultar em uma
ação corretiva precisa e imediata na própria configuração do Sistema de
Automação Predial ou irá direcionar, com a mesma precisão, a ação a ser
tomada em campo pelos técnicos competentes.

Arquitetura do sistema de automação predial
Basicamente, um Sistema de Automação Predial é composto pela automação
individual dos seguintes subsistemas:
1. Sistema de Ar Condicionado (chillers, termoacumulação, bombas de água
gelada e condensação, atuadores, válvulas, torres de resfriamento, sensores
de temperatura e pressão, variadores de freqüência, compressores etc.);
Elaborado por:

Analisado por:

Professor :

Marcelo Gandra Falcone

Alessandra Aparecida Vieira

Marcelo Gandra Falcone

QUANDO IMPRESSO CONSIDERAR PIRATARIA - CÓPIA NÃO AUTORIZADA
UNINOVE

Rev. B

Engenharia de Avaliações e Perícias
Manutenção Predial e Avaliação de Máquinas
e Equipamentos

16/07/2011
Folha 237/424

2. Sistema de ventilação/ exaustão mecânica: (ar externo, copas, subsolos
etc.);
3. Sistema de recalque de águas (pluvial, servida e potável);
4. Gerenciamento de Energia Elétrica (demanda, fator de potência, medidores
de energia elétrica etc.);
5. Sistema de Iluminação (quadrantes, zonas etc.);
6. Sistema de Grupos Geradores e no-break;
7. Sistema contra Incêndio (sensores de fumaça, gás e termovelocimétricos
etc.);
8. Sistema de Combate a Incêndio;
9. Sistema de Transporte Vertical e Escadas Rolantes;
10. Sistema de Segurança Patrimonial;
11. Sistema de Controle de Acesso (portões, cancelas e catracas eletrônicas
etc.);
12. Sistema de Circuito Fechado de Televisão (C.F.T.V.);
13. Sistema de sonorização.

O Sistema de Supervisão Predial permite executar a programação horária para
o funcionamento de cada um dos subsistemas descritos acima, no modo
automático ou manual. O Sistema de Automação Predial também reconhece
automaticamente datas especiais como feriados, sábados e domingos, não
efetuando a ativação de determinados sistemas (exemplo: ar condicionado nos
finais de semana).
Cada um dos subsistemas mencionados acima possui recursos de automação,
os quais são consolidados/ agrupados em uma estação central de trabalho
(computador). Existe uma rede de comunicação física entre esse computador
central, com uma série de controladoras espalhadas pelo edifício, normalmente
próximas de cada subsistema, e por fim, o próprio subsistema.
Todos os subsistemas, por intermédio do computador central, possuem a
capacidade de receberem, entre outros recursos, a programação horária para
ligarem ou desligarem em horários previamente determinados.
Elaborado por:

Analisado por:

Professor :

Marcelo Gandra Falcone

Alessandra Aparecida Vieira

Marcelo Gandra Falcone

QUANDO IMPRESSO CONSIDERAR PIRATARIA - CÓPIA NÃO AUTORIZADA
UNINOVE

Rev. B

Engenharia de Avaliações e Perícias
Manutenção Predial e Avaliação de Máquinas
e Equipamentos

16/07/2011
Folha 238/424

Cada qual possui, segundo a sua natureza de atuação e função, recursos
adicionais de ajuste e identificação.
Como exemplo de instrumentação utilizada, temos:
















Chave de nível instalada em tanques;
Medidores de vazão convencional 4-20 mA;
Sensores/ transdutores de pressão;
Sensores de temperatura;
Sensores de umidade;
Válvulas e atuadores;
Chaves de fluxo;
Chaves fim de curso;
Válvulas de expansão eletrônica;
Resistências elétricas;
Transdutores de corrente;
Transdutores de potência;
Pressostatos;
Termostatos;
Sensores/ transdutores de vibração.

Com esses dispositivos é possível controlar/ monitorar exemplificativamente as
seguintes variáveis:














Monitoração/ controle do estado ligado/ desligado dos
equipamentos;
Monitoração do estado local/ remoto dos comandos;
Monitoração do estado de desligamento de motores
por sobrecarga;
Alarmes diferenciados para os pontos digitais;
Alarmes de limites analógicos ultrapassados;
Funções de programação horária, com controle de
demanda de energia elétrica, programa de
manutenção e rolagem/ revezamento de cargas
ligadas, de forma a permitir a otimização do
funcionamento dos equipamentos;
Supervisão de pontos digitais e analógicos;
Monitoração das tensões elétricas de alimentação,
por fase;
Monitoração da demanda instantânea de potência
elétrica;
Monitoração de energia elétrica consumida;
Monitoração dos variadores de freqüência;
Monitoração das falhas dos equipamentos;

Elaborado por:

Analisado por:

Professor :

Marcelo Gandra Falcone

Alessandra Aparecida Vieira

Marcelo Gandra Falcone

QUANDO IMPRESSO CONSIDERAR PIRATARIA - CÓPIA NÃO AUTORIZADA
UNINOVE

Engenharia de Avaliações e Perícias
Manutenção Predial e Avaliação de Máquinas
e Equipamentos

















Rev. B
16/07/2011
Folha 239/424

Monitoração das temperaturas do motor elétrico e
mancais do compressor;
Monitoração/ controle do número de partidas dos
compressores por hora;
Monitoração de pressões de trabalho do condensador
e do evaporador;
Monitoração de pressão diferencial de óleo nos
compressores;
Monitoração do controle de capacidade de cada
compressor;
Monitoração das resistências elétricas instaladas no
cárter do compressor;
Monitoração/ controle do degelo no evaporador;
Monitoração da umidade relativa dentro da câmara
frigorífica;
Monitoração da posição das válvulas de bloqueio de
água de condensação;
Controle de “set point” de temperatura dos
equipamentos;
Monitoração da carga térmica requerida;
Monitoração da vazão de água gelada, nas prumadas
e tanques de gelo;
Monitoração das chaves de fluxo de água gelada,
água de condensação e ar em ventiladores e
condicionadores de ar;
Monitoração dos níveis do tanque de expansão.

O Sistema de Automação Predial é composto por um microcomputador central
tipo PC, onde um software gráfico de supervisão que monitora e/ ou controla
todos os 13 subsistemas descritos acima. Entre outras funções, pode manter
registro das principais variáveis, de quadros elétricos, bombas, exaustores,
quadros de iluminação, níveis de caixas de água poços de águas servidas,
esgoto sanitário, temperatura dos ambientes, temperatura do sistema de ar
condicionado etc.
O software de interface geralmente disponibiliza funções diferenciadas, as
quais variam segundo cada Fabricante. No entanto, algumas funções comuns,
diretamente ligadas ao controle “primário/ elementar” da edificação, estão
presentes em praticamente todos.
A Visualização Gráfica permite ao Operador do Sistema de Automação Predial
tomar a decisão correta no momento oportuno como, por exemplo: solicitar que
a equipe de manutenção tome as providências corretivas necessárias para
sanar um problema apresentado por um equipamento de sistema de ar
condicionado, o qual provocou a elevação de temperatura num determinado
Elaborado por:

Analisado por:

Professor :

Marcelo Gandra Falcone

Alessandra Aparecida Vieira

Marcelo Gandra Falcone

QUANDO IMPRESSO CONSIDERAR PIRATARIA - CÓPIA NÃO AUTORIZADA
UNINOVE

Rev. B

Engenharia de Avaliações e Perícias
Manutenção Predial e Avaliação de Máquinas
e Equipamentos

16/07/2011
Folha 240/424

ambiente de escritório, antes mesmo do usuário final apresentar uma
reclamação. O Operador do Sistema visualiza graficamente o problema por
intermédio de um alarme na tela. A mesma analogia deve ser aplicada para os
demais recursos que o Sistema de Automação Predial disponibiliza.

Elaborado por:

Analisado por:

Professor :

Marcelo Gandra Falcone

Alessandra Aparecida Vieira

Marcelo Gandra Falcone

QUANDO IMPRESSO CONSIDERAR PIRATARIA - CÓPIA NÃO AUTORIZADA
UNINOVE

Rev. B

Engenharia de Avaliações e Perícias
Manutenção Predial e Avaliação de Máquinas
e Equipamentos

16/07/2011
Folha 241/424

9.12 PAISAGISMO

Descrição e finalidade
Paisagismo é o estudo do meio ambiente físico, de forma planejada, compondo
elementos construídos e vegetais em ambientes abertos e fechados, áreas
públicas e privadas.
Neste estudo são levados em consideração aspectos físicos
– clima, vegetação, solo e água – aspectos funcionais – acesso, circulação,
uso, características da área a ser tratada, entre outros.
O paisagismo complementa a arquitetura, criando ambientes
agradáveis, confortáveis e saudáveis por meio da beleza de infinitas cores,
formatos, texturas de folhas e flores e aromas; conforto térmico e de umidade;
acessibilidade; repouso; barreira sonora; proteção contra o vento etc., além de
poder contribuir com a permeabilização do solo da cidade.
O conceito que muitos fazem de paisagismo é que ele se
restringe apenas às espécies vegetais, o que não é correto, pois engloba
também, dentre outros: pavimentação, mobiliário, vasos, espelhos d’água,
equipamentos de laser e esportes, jardineiras, posteação e aparelhos de
iluminação, tubulações, elementos de drenagem e irrigação.
Espaços de jardins, internos ou externos, quintais ou áreas
externas de um condomínio, desde que bem planejados, projetados e
executados, além de permitir ao usuário ambiente para lazer, relaxamento e
integração homem-natureza e, consequentemente, melhor qualidade de vida,
valorizam o imóvel.

Principais anomalias e recomendações
As principais anomalias referentes ao paisagismo estão
relacionadas com:




Não existência de projeto ou projeto deficiente, neste item incluindo a má
escolha da espécie vegetal;
Má execução do plantio;
Falta de manutenção ou manutenção deficiente.

Serão apresentados a seguir aspectos para se evitar ou
minimizar anomalias.

a) Projeto:
Elaborado por:

Analisado por:

Professor :

Marcelo Gandra Falcone

Alessandra Aparecida Vieira

Marcelo Gandra Falcone

QUANDO IMPRESSO CONSIDERAR PIRATARIA - CÓPIA NÃO AUTORIZADA
UNINOVE

Rev. B

Engenharia de Avaliações e Perícias
Manutenção Predial e Avaliação de Máquinas
e Equipamentos

16/07/2011
Folha 242/424

O projeto é imprescindível para o resultado final do
paisagismo, inclusive influenciando na manutenção dos espaços criados e em
seus objetivos finais, minimizando anomalias, devendo ser elaborado por
profissional habilitado e capacitado para esse fim – paisagista.
O projeto, ou falta dele, poderá acarretar sérias
conseqüências na qualidade ambiental e/ou física do espaço criado, no que se
refere principalmente à parte estética, sombreamento, bloqueio sonoro,
permeabilidade do solo, escolha das espécies vegetais, esta de acordo com o
tipo de solo e área disponível.
Na seleção de árvores, arbustos e flores em um projeto
paisagístico, não se pode apenas considerar a beleza plástica – folhagens,
formas, flores e seu perfume, texturas e cores -, mas também o conhecimento
profundo das características, hábitos de cada planta e os objetivos que
almejamos alcançar com o projeto.
Deve-se ter conhecimento sobre o clima; insolação
necessária; tipo de solo; sistema radicular (raízes profundas ou superficiais);
tronco; altura forma; copa; ramificação; galhos; folhagens perenes ou caducas;
grandes ou pequenas; frutificação; floração; distâncias de plantios; resistência
a pragas etc.
Dois fatores são essenciais e devem ser analisados
conjuntamente: o local de plantio e as características das espécies.
Primeiramente deve-se ter conhecimento das condições e
uso do local, se interno ou externo (de grandes ou pequenas dimensões), se
em calçada etc.
A escolha das espécies vegetais também dependerá da
definição do local, pois suas características demandarão especificidades no
projeto. Exemplos:




Quanto à altura: Verificação da altura média da planta adulta escolhida
(principalmente quando em locais internos, próxima à fiação elétrica
etc.), para que a mesma não tenha que ser sacrificada posteriormente;
Quanto à folhagem: Algumas espécies sofrem quedas de folhas ou
ramos, especialmente durante o outono e inverno, o que pode causar
entupimento de calhas e canalizações, provocando infiltrações ou danos
em coberturas e telhados;

Elaborado por:

Analisado por:

Professor :

Marcelo Gandra Falcone

Alessandra Aparecida Vieira

Marcelo Gandra Falcone

QUANDO IMPRESSO CONSIDERAR PIRATARIA - CÓPIA NÃO AUTORIZADA
UNINOVE

Rev. B

Engenharia de Avaliações e Perícias
Manutenção Predial e Avaliação de Máquinas
e Equipamentos

16/07/2011
Folha 243/424

FIGURA






Quanto à frutificação: lembrar que os frutos caem e, se pesados,
poderão causar acidentes e soltar tinta, portanto não aconselháveis em
estacionamentos e em calçadas, entretanto são árvores que atraem
pássaros;
Quanto à floração: coloração desejada, época da florada e perfume.
Quanto a esse item é importante definir corretamente onde e em qual
quantidade deve-se plantar determinada espécie, pois flores que exalam
perfumes fortes podem causar intolerâncias (próximo a dormitórios, por
exemplo);
Quanto ao enraizamento: Devem ser evitadas espécies com grande
enraizamento em locais próximos de canalizações, tubulações etc., pois
pode ser prejudicial às obras de drenagem;

FIGURA


Tempo de crescimento: O tempo de crescimento de cada planta é outro
aspecto importante, pois algumas espécies desenvolvem-se lentamente,
outras crescem mais rápido e é necessário respeitar esses prazos.
Projeta-se o plantio de árvores considerando sua dimensão adulta, com

Elaborado por:

Analisado por:

Professor :

Marcelo Gandra Falcone

Alessandra Aparecida Vieira

Marcelo Gandra Falcone

QUANDO IMPRESSO CONSIDERAR PIRATARIA - CÓPIA NÃO AUTORIZADA
UNINOVE

Rev. B

Engenharia de Avaliações e Perícias
Manutenção Predial e Avaliação de Máquinas
e Equipamentos

16/07/2011
Folha 244/424

espaçamento de 5 m, 10 m ou mais de 10 m. Em caso de bosque o
plantio deverá ser com distanciamento menor entre as árvores, de modo
que as mesmas se sobreponham para dar impressão de mata densa.
Também nesse item de projeto cabe destacar que:








O revestimento do piso deve ser definitivo em projeto de acordo a
indicação técnica do revestimento, uso e espaço a ser criado,
considerando aspectos quanto à característica escorregadia, texturas,
possibilidade de destacamento de placas de pisos, desgaste, cores etc.;
A escolha do equipamento de lazer, em especial playground, deve ser
cuidadosa e definida quanto ao local de implantação (local sombreado e
amplo, que proporcione segurança às crianças etc.), bem como às
manutenções exigidas. O equipamento de lazer é tratado em item
específico deste livro;
Jardineiras merecem atenção especial quanto à impermeabilização e
drenagem, necessitando serem bem projetadas e executadas, caso
contrário podem causar infiltrações em paredes e lajes;
Em jardins internos, além do problema de infiltrações, deve-se ter
atenção quanto à luminosidade no local, já que a falta desta limita o
crescimento das plantas e, quanto à aeração, pois baixa aeração no
ambiente aumenta a incidência de pragas e doenças.

Deve-se efetuar projeto e planejamento cuidadoso do paisagismo, para que,
após o plantio executado, não seja necessário “arrancar” as plantas por
estarem “atrapalhando” a passagem, “sujando” o piso, entupindo calhas, raízes
quebrando pisos etc.
b) Plantio:
Ao selecionar espécies para o plantio deve-se procurar mudas isentas de
pragas ou doenças, com boa formação e de preferência novas, pois as velhas
se recuperam muito devagar.
Dependendo do porte da muda e da qualidade do solo, a cova deve ser aberta
com medidas apropriadas e devidamente adubada para permitir a adaptação
da muda e um bom desenvolvimento inicial (2/3 de terra de boa qualidade e 1/3
de adubo orgânico bem curtido). Este procedimento deverá ser feito alguns
dias antes do plantio, para permitir sua inoculação por micro-organismos.
O preparo do solo pressupõe limpeza do terreno e, para tanto, deve-se
remover todo material prejudicial ao desenvolvimento e manutenção da
vegetação, ou seja, tocos, materiais não biodegradáveis, materiais
ferruginosos, entulho de obra, entre outros. Nas áreas que tenham sido
Elaborado por:

Analisado por:

Professor :

Marcelo Gandra Falcone

Alessandra Aparecida Vieira

Marcelo Gandra Falcone

QUANDO IMPRESSO CONSIDERAR PIRATARIA - CÓPIA NÃO AUTORIZADA
UNINOVE

Rev. B

Engenharia de Avaliações e Perícias
Manutenção Predial e Avaliação de Máquinas
e Equipamentos

16/07/2011
Folha 245/424

compactadas por ocasião da execução de obras civis, os terrenos devem ser
submetidos a uma aragem profunda, além de drenagem.

FIGURA
No plantio, as embalagens e acondicionantes (latas, sacos plásticos
etc.)
deverão ser cuidadosamente removidas, evitando-se afetar o raizame. Cada
árvore será fincada a um tutor de 2 m de altura, de madeira ou bambu, para
evitar que o vento a abale, com amarração ao tronco por ráfia ou barbante
(jamais arame!), de modo que a planta e o tutor sejam interligados por uma
laçada folgada, em forma de oito; o material da amarração deverá ser
substituído à medida que se apresentar danificado e sem condições de
proteger a muda.
Pressupõem-se também a análise preliminar do solo com
determinação, no mínimo, do pH (grau de acidez).
A época adequada para o plantio é o início do período de
chuvas, portanto, fora desse período a rega das mudas deverá ser diária, por
um período de dois meses após o plantio.

Elaborado por:

Analisado por:

Professor :

Marcelo Gandra Falcone

Alessandra Aparecida Vieira

Marcelo Gandra Falcone

QUANDO IMPRESSO CONSIDERAR PIRATARIA - CÓPIA NÃO AUTORIZADA
UNINOVE

Rev. B

Engenharia de Avaliações e Perícias
Manutenção Predial e Avaliação de Máquinas
e Equipamentos

16/07/2011
Folha 246/424

FIGURA
Deve-se comprar apenas mudas sadias, adquiridas de viveiristas idôneos, com
o mínimo de três pernadas bem espaçadas e alternadas (1). Para a
arborização o tronco deve estar livre de ramos até 1,80 m – 2,00 m (2). O
transplante deve ser realizado de preferência em dia nublado ou úmido (3).As
raízes das mudas devem ser conservadas úmidas, por irrigações periódicas do
torrão e a embalagem da muda retirada por ocasião do plantio (4). Após o
plantio, é muito importante a proteção da muda por meio de gradil de madeira,
por exemplo, contra veículos, animais etc. (5)
No plantio de um gramado, primeiramente deve-se decidir o tipo de grama a
ser plantada, dependendo do local o objetivo desejado. Receberão após o
plantio uma camada de terra de cobertura, de espessura aproximada de 2 cm,
para sua regularização e preenchimento de interstícios entre as placas.
Cabe destacar que nem todas as variedades crescem sob qualquer condição
climática.

Elaborado por:

Analisado por:

Professor :

Marcelo Gandra Falcone

Alessandra Aparecida Vieira

Marcelo Gandra Falcone

QUANDO IMPRESSO CONSIDERAR PIRATARIA - CÓPIA NÃO AUTORIZADA
UNINOVE

Rev. B

Engenharia de Avaliações e Perícias
Manutenção Predial e Avaliação de Máquinas
e Equipamentos

16/07/2011
Folha 247/424

c) Manutenção:
As mudas plantadas devem ser regularmente observadas para que se possa
avaliar o seu desenvolvimento e tomar as medidas necessárias para correção
de distorções no crescimento. Serão verificados, principalmente se estão
ocorrendo ataque de pragas e doenças, brotações, ramificações indesejáveis
etc.
Algumas pragas de jardim e recomendações:
1. Combate adequado a pragas e doenças:
Apesar deste tema ser motivo de capítulo específico deste livro, as principais
pragas que atacam as plantas são: cochonilhas, lesmas, caracóis, lagartas,
formigas e pulgões e, a melhor forma de combatê-las é com a prevenção.
Cochonilhas: São pequenos pontos brancos, pretos ou marrons que se alojam
nas folhas e galhos atacando as plantas e sugando a seiva. Aconselha-se
retirar de forma manual com algodão ou pano embebido em álcool.
Lesmas/Caracóis/Lagartas: Essas três pragas atacam a planta se
alimentando das folhas; nos três casos aconselha-se a retirada manual. Usar
luvas, pois algumas lagartas podem queimar as mãos.
Formigas: Costumam se alimentar das folhas. Para combatê-las, além de se
identificar e destruir o formigueiro, pode-se aplicar em um pano poroso um
preparado com pimenta macerada e álcool e amarrá-lo no tronco da planta,
sem apertar demais.
Pulgões: Essa praga aloja-se nos troncos das plantas e os deixam melados,
muitas vezes aparecem também na folhagem. São pontos pretos, marrons e
brancos, de tamanho pequeno e sugam a seiva da planta. Devem ser retirados,
com pano e/ou algodão embebidos em álcool, um a um. Algumas vezes é
necessário repetir o procedimento durante algumas semanas, dependendo de
como a praga estiver proliferada. Borrifar as folhas e os galhos com calda de
fumo + álcool melhora a eficiência do combate.

2. Para prevenção de pragas aconselha-se conferir regularmente ambas as
faces das folhas para detectar se estão livres de manchas. Também é
importante verificar os galhos e notar se estão melados ou se possuem
pontinhos pretos, marrons ou brancos (tipo algodão). Galhos secos e folhas
amarelas devem ser eliminados.

Elaborado por:

Analisado por:

Professor :

Marcelo Gandra Falcone

Alessandra Aparecida Vieira

Marcelo Gandra Falcone

QUANDO IMPRESSO CONSIDERAR PIRATARIA - CÓPIA NÃO AUTORIZADA
UNINOVE

Rev. B

Engenharia de Avaliações e Perícias
Manutenção Predial e Avaliação de Máquinas
e Equipamentos

16/07/2011
Folha 248/424

3. A qualidade da terra comprada também é muito importante, pois muitas
vezes ela já está contaminada com ervas daninhas e pragas. Por isso,
recomenda-se a compra de terra de boa qualidade.
4. Quando a infestação não é muito grande, pode-se eliminar as ervas
daninhas de forma manual, de preferência com auxílio da ferramenta “Firmino”,
arrancando as mesmas da raiz, caso contrário utilize herbicidas.
5. A poda correta de um gramado e a freqüência da mesma auxilia no bom
desenvolvimento da grama.
6. Na rega do gramado não deve ocorrer empoçamento ou deixar áreas
ressecadas e, também, não ser superficial, pois o sistema radicular da grama
possui, no mínimo, 10 cm de altura.
7. Após o uso, lavar as ferramentas com água e sabão, além de passar álcool
em equipamentos de corte, para evitar a disseminação de doenças.
8. O preparo da terra e o plantio devem ser executados por profissional
jardineiro, o qual poderá particularizar o tratamento para cada tipo de solo a
cada espécie vegetal.
Curiosidade e dicas
1. Segundo o Código de Obras do Município de São Paulo, Lei nº 11.228 de 25
de junho de 1992, para se assegurar as condições naturais de absorção das
águas pluviais no lote, deverá ser reservada no mínimo 15% da área do terreno
livre de pavimentação ou construção, ou seja, área destinada à permeabilidade
do solo;
2. A vegetação é tão importante que pode alterar consideravelmente a
diferença de temperatura entre diferentes regiões de uma cidade;
3. Árvores frutíferas atraem pássaros e, dependendo da espécie, podem ser
cultivadas até em vasos de 60 cm de diâmetro (ex.: jabuticabeira, romã e
pitanga), desde que em ambientes ensolarados;
4. Escolher árvores cujo porte e raízes se desenvolvam sem causar prejuízos a
pisos internos e calçadas;
5. Na aquisição de uma planta deve-se saber o local onde a mesma será
plantada, se em local de sol ou sombra; plantas de sol ficam feias e não se
desenvolvem em locais de sombra e vice-versa;
6. No plantio, as mudas devem ser enterradas com o torrão (terra que envolve
a raiz) e este deve estar firme e intacto, evitando-se as raízes nuas;
Elaborado por:

Analisado por:

Professor :

Marcelo Gandra Falcone

Alessandra Aparecida Vieira

Marcelo Gandra Falcone

QUANDO IMPRESSO CONSIDERAR PIRATARIA - CÓPIA NÃO AUTORIZADA
UNINOVE

Rev. B

Engenharia de Avaliações e Perícias
Manutenção Predial e Avaliação de Máquinas
e Equipamentos

16/07/2011
Folha 249/424

7.Algumas épocas de plantio: Quaresmeira: início da primavera; Pata de vaca:
verão; Azálea: início da primavera; Dracena: primavera; Hortênsia: fim de
março; Lírio da paz: primavera;
8. As mudas, na véspera e após o plantio, deverão receber abundante rega,
assim como até as respectivas pegas;
9. Para o plantio, deve-se saber se a terra está boa para plantar. Para tanto,
deve-se retirar punhados de terra de diferentes pontos do jardim, com
profundidade de 15 cm a 20 cm. O nível de acidez da terra (pH) deve oscilar
entre 6 e 7. Há lojas especializadas e faculdades de agronomia que podem
fazer essa análise;
10. Nos gramados e forrações, proceder à rega diária na fase de enraizamento
e corte periódico, com aproveitamento de parte da grama cortada como adubo;
11. Plantar as mudas ou placas de gramas o mais próximo possível uma das
outras, pois um gramado denso evita a proliferação de ervas daninhas;
12. As gramas rasteiras formam um gramado melhor para áreas de tráfego
intenso;
13. Árvores, arbustos e trepadeiras devem receber a poda de limpeza ao
menos uma vez por semestre, para retirada dos ramos e galhos quebrados,
doentes ou secos;
14. Limpar a área do terreno junto às espécies quanto a brotações e
ramificações indesejáveis;
15. Todas as espécies devem receber adubação anual de restituição;
16. Casca de ovo, casca de laranja, banana etc., “borra” do café, folhas de
plantas e árvores e serragem de madeira são ótimos nutrientes para as
plantas, entretanto não colocá-los diretamente na terra junto à planta, pois
durante a decomposição podem prejudicá-la, tirando os nutrientes. Para que
isso não ocorra deixe o material se decompor antes da colocação na planta
(enterrando o material, alternando com terra e serragem);
17. Há adubos apropriados para cada espécie vegetal. Normalmente o adubo
deve ser colocado uma vez por mês;
18. Não molhe as flores quando for pulverizar a planta;
19. A primavera é a época do ano mais indicada para a adubação, que deve
ser feita uma semana antes do plantio e, de preferência, combinando os três
Elaborado por:

Analisado por:

Professor :

Marcelo Gandra Falcone

Alessandra Aparecida Vieira

Marcelo Gandra Falcone

QUANDO IMPRESSO CONSIDERAR PIRATARIA - CÓPIA NÃO AUTORIZADA
UNINOVE

Rev. B

Engenharia de Avaliações e Perícias
Manutenção Predial e Avaliação de Máquinas
e Equipamentos

16/07/2011
Folha 250/424

tipos de adubo: orgânico (húmus, esterco e farinha de ossos), mineral (calcário)
e químico (nitrogênio, fósforo e potássio);
20. Adubos químicos, como o NPK, podem queimar o gramado. Por isso,
recomenda-se diluir o produto em água e regar a grama logo após o seu uso;
21. Aconselha-se revolver a terra para que ela se oxigene. Isso pode ser feito
em conjunto com a adubação;
22. Existem inúmeras espécies vegetais que embora sejam ornamentais,
conhecidas e apreciadas, apresentam caráter tóxico, ou seja, plantas que
quando ingeridas causam danos ao homem ou animais, entre elas: comigo
ninguém pode; coroa de cristo, cróton, fícus, saia branca, mamona, arruda,
jasmim manga. Tais espécies não devem ser plantadas especialmente em
locais próximos a acessos de crianças (playground), jardins públicos e
interiores de residências;
23. Para prevenção de pragas aconselha-se conferir regularmente se as folhas
estão livres de manchas. Também verificar ambos os lados para manter o
controle sobre as pragas. É importante verificar os galhos e notar se eles estão
melados ou se possuem pontinhos pretos, marrons ou brancos. Galhos secos e
folhas amarelas devem ser eliminados, bem como comprar terra de qualidade,
pois pode vir já contaminada;
24. Em estacionamentos, para proporcionar sombreamento, utilizar espécies
que não tenham raízes superficiais e agressivas e, também, grandes frutos ou
frutos que soltam tinta;
25. Evitar acúmulo de água nos pratos de apoio das plantas e vasos, pois pode
causar apodrecimento das raízes e conseqüente morte das plantas, além de
acumular água e assim, se transformar em foco de proliferação do mosquito da
Dengue;
26. Em relação à prevenção da Dengue:
a) não deixar água parada mesmo que limpa, em qualquer recipiente;
b) retirar a água do recipiente e lavá-lo com água e sabão;
c) a Bromélia acumula água em sua roseta, podendo abrigar ovos e larvas
de mosquitos, caso essa água esteja limpa e estagnada.
Visto que o ciclo larval do Aedes Aegypti é de uma semana, recomendase que a água acumulada na roseta seja renovada semanalmente com jato de
água lançado por mangueira sobre a planta.
Pode-se, também, pulverizar as Bromélias com calda de fumo, que é um
inseticida natural eficiente e não prejudica a planta.
Elaborado por:

Analisado por:

Professor :

Marcelo Gandra Falcone

Alessandra Aparecida Vieira

Marcelo Gandra Falcone

QUANDO IMPRESSO CONSIDERAR PIRATARIA - CÓPIA NÃO AUTORIZADA
UNINOVE

Rev. B

Engenharia de Avaliações e Perícias
Manutenção Predial e Avaliação de Máquinas
e Equipamentos

16/07/2011
Folha 251/424

Você sabia?


Que o profissional especializado em paisagismo é denominado “arquiteto
paisagista”?



Que o horário ideal de rega, principalmente no verão, é de manhã cedo ou à
tardinha, quando o sol está mais fraco?



Que para uma manutenção menos onerosa, pode-se substituir a grama por
espécies tipo forração?



Que árvores com folhas “caducas” são aquelas que perdem suas folhas e
que em países de clima frio, o outono é considerado uma das estações
mais bonitas, justamente por causa delas?



Os nomes comuns, ou vulgares, das espécies vegetais variam de acordo
com o país, a região e até mesmo de uma pessoa para outra? Ao contrário,
os nomes científicos são regulamentados pelo Código Internacional de
Nomenclatura Botânica

Elaborado por:

Analisado por:

Professor :

Marcelo Gandra Falcone

Alessandra Aparecida Vieira

Marcelo Gandra Falcone

QUANDO IMPRESSO CONSIDERAR PIRATARIA - CÓPIA NÃO AUTORIZADA
UNINOVE

Rev. B

Engenharia de Avaliações e Perícias
Manutenção Predial e Avaliação de Máquinas
e Equipamentos

16/07/2011
Folha 252/424

9.13 Controle de pragas urbanas

Descrição do Sistema
São conhecidas como pragas urbanas as formigas, ratos, pombos, cupins,
brocas etc., ou qualquer animal indesejável ao meio. Podemos dividi-las em
dois grupos: as prejudiciais à saúde das pessoas e as que são prejudiciais à
saúde das edificações; tanto uma como outra podem provocar danos
irreparáveis. Incluem-se no primeiro grupo: baratas, formigas, ratos, pombos,
abelhas, marimbondos etc., e no segundo grupo: as brocas, os cupins etc.
Se pensarmos nas nossas edificações como organismos vivos, veremos que
as pragas urbanas são como doenças que, se tratarmos preventivamente ou
tão logo identificadas, obteremos os melhores resultados e menores prejuízos.
As pragas urbanas de maneira geral aproveitam-se de nossas negligências
para sua sobrevivência e disseminação. Sendo assim, para obtermos sucesso
no controle de qualquer praga devemos eliminar no mínimo um dos três fatores
vitais para a sua sobrevivência, que são: o alimento, o acesso ou o abrigo.
Portanto, desde o projeto devemos pensar nas pragas, em como evitar acesso
ou abrigo por meio de detalhes construtivos e arquitetônicos e sistemas de
controle.
Finalidade
Apresentar técnicas e procedimentos para prevenir, amenizar e/ou controlar as
pragas urbanas.
Principais características, medidas preventivas
Recomendações e orientações técnicas:

e

de

controle.

Para compreender e poder prevenir ou curar as patologias oriundas por
agentes bióticos, vamos descrever hábitos e características das pragas e
respectivos métodos de controle, enfocando as de maior incidência e que
causam maiores danos, como algumas espécies de cupins, brocas ou
carunchos, fungos apodrecedores, ratos e pombos.
Qualquer ambiente, seja de produção, residencial, lazer etc., está sujeito ao
ataque de pragas e sua presença e proliferação estão diretamente ligadas aos
seguintes fatores:




Abrigo necessário para seu desenvolvimento, reprodução e permanência;
Alimento disponível para sua manutenção e sobrevivência;
Acesso e facilidades de entrada e invasão do ambiente.

Elaborado por:

Analisado por:

Professor :

Marcelo Gandra Falcone

Alessandra Aparecida Vieira

Marcelo Gandra Falcone

QUANDO IMPRESSO CONSIDERAR PIRATARIA - CÓPIA NÃO AUTORIZADA
UNINOVE

Rev. B

Engenharia de Avaliações e Perícias
Manutenção Predial e Avaliação de Máquinas
e Equipamentos

16/07/2011
Folha 253/424

Para a prevenção de várias dessas pragas, sistemas de prevenção, detalhes
construtivos e arquitetônicos, identificação das espécies, e principalmente do
conhecimento da biologia e hábitos das pragas, promoverão resultados mais
eficientes.
Esses conhecimentos, aliados a ações preventivas, monitoramento das áreas,
inspeções regulares, localização de ninhos (no caso de formigas, cupins etc.),
locais adequados para o armazenamento de lixo e detritos, sejam nas
edificações ou em áreas livres, contribuirão para um controle eficaz e seguro.
O controle de pragas curativo poderá ser realizado por intervenções químicas,
utilizando equipamentos de alta tecnologia e produtos de eficácia comprovada.
Estes são bastantes seguros e eficientes, mas nunca serão tão eficazes e
seguros como os métodos preventivos.
Xilófagos
Existem muitas ordens de insetos xilófagos (xilo=madeira,fagos=alimento),
sendo que a ordem dos Isópteros e dos Coleópteros contêm as espécies de
maior incidência e de maior poder de destruição no meio urbano.
Os cupins são da Ordem Isóptera, onde encontramos as espécies de insetos
mais agressivas. No Brasil podemos encontrar cerca de 800 espécies de
cupins, mas adaptadas ao meio urbano iremos encontrar apenas algumas
dezenas, que subdividiremos em dois grupos, para facilitar o estudo: cupins
subterrâneos ou de solo e cupins de madeira seca.

Cupim subterrâneo – Características
Podemos encontrá-los em todo o território brasileiro, tanto espécies nativas
(oriundas de nosso ecossistema) ou exóticas (migraram de outros países ou
continentes). Entre as espécies exóticas encontramos as que causam os
maiores prejuízos e se adaptaram muito bem ao meio urbano e ao nosso clima.
Como seus predadores naturais não estão presentes ao meio urbano, essas
espécies se multiplicam e se disseminam sem controle.
Nomeamos esse grupo de espécies por cupins subterrâneos ou cupins de solo,
pois no ambiente natural o ninho se aloja no subsolo, mas se alimentam do
cerne ou galhos de árvores, desgastando-os até não resistirem seu peso e
caírem. Esses insetos procuram alojar-se em áreas úmidas, saindo em busca
de alimento para sobreviverem. Quando invadem as edificações, podem
construir seus ninhos ou abrigarem-se nas lajes duplas ou entulhadas, caixões
perdidos, shafts, paredes, jardineiras, prumadas hidráulicas etc.
Elaborado por:

Analisado por:

Professor :

Marcelo Gandra Falcone

Alessandra Aparecida Vieira

Marcelo Gandra Falcone

QUANDO IMPRESSO CONSIDERAR PIRATARIA - CÓPIA NÃO AUTORIZADA
UNINOVE

Rev. B

Engenharia de Avaliações e Perícias
Manutenção Predial e Avaliação de Máquinas
e Equipamentos

16/07/2011
Folha 254/424

Esses insetos são sensíveis à luz, se abrigam e se locomovem por locais
escuros e protegidos, tornando-se praticamente invisível ou difícil de perceber
a sua presença.
De uma maneira geral, prevenir uma infestação de qualquer praga implica
eliminar pelo menos um desses fatores, locais de abrigo, de acesso dessa
praga ao ambiente ou a indisponibilidade de alimento e água.
Os cupins subterrâneos, para acessarem as edificações, se aproveitam das
fissuras ou falhas já existentes na estrutura ou alvenaria, assim como juntas de
dilatação, os conduítes, dutos ou shafts hidráulicos etc. ou os demais
componentes do edifício. Mas também podem perfurar o concreto para acessar
uma determinada área, quando esse é obstáculo entre a colônia e a madeira,
por isso são conhecidos por CUPINS DE CONCRETO.
No ponto particular em que o ninho está diretamente em contato com a
alvenaria o dano pode ser maior, havendo perfuração mais intensa em
componentes como tijolos de barro. As secreções e subprodutos da atividade
vital dos cupins causam alteração na resistência da alvenaria e do concreto
pela oxidação da ferragem quando em contato direto com a colônia.
Os cupins são insetos sociais e representam o melhor exemplo de uma
sociedade bem organizada, na qual cada indivíduo tem uma função específica
e importante para a sobrevivência do termiteiro (cupinzeiro). Para cumprir
essas funções os indivíduos de uma mesma colônia se diferenciam
morfologicamente (na sua forma), formando três castas; os reprodutores, os
operários e os soldados.

Reprodutores são os chamados reis e rainhas, conhecidos pela população por
aleluias. Voam aos milhares, geralmente na primavera, em direção às luzes.
Após o vôo nupcial, cada casal tentará dar início a uma nova colônia,
aninhando-se no solo (terra), jardins, jardineiras, nas alvenarias, entulhos
colocados no interior de lajes etc., e irão permanecer abrigados no termiteiro ou
cupinzeiro e então sua única função é a reprodução. Uma rainha pode colocar
mais de 10.000 ovos por dia e viver 20 anos ou mais, dependendo da espécie
(caso venha a morrer poderá ser substituída por um ou outros casais reais,
permanecendo a colônia ativa por centenas de anos).
Operários são os responsáveis pela construção e manutenção do ninho, mas
sua principal função é buscar o alimento e distribuí-lo a todos os indivíduos da
colônia, inclusive as larvas e ninfas. O alimento é a celulose conseguida por
meio da madeira, papel, couro etc. Para obtê-lo, esses indivíduos irão invadir
qualquer tipo de edificação, utilizando como via de acesso jardins, redes
elétricas, hidráulicas, telefonia, juntas de dilatações, entre outros, ou, caso seja
Elaborado por:

Analisado por:

Professor :

Marcelo Gandra Falcone

Alessandra Aparecida Vieira

Marcelo Gandra Falcone

QUANDO IMPRESSO CONSIDERAR PIRATARIA - CÓPIA NÃO AUTORIZADA
UNINOVE

Rev. B

Engenharia de Avaliações e Perícias
Manutenção Predial e Avaliação de Máquinas
e Equipamentos

16/07/2011
Folha 255/424

necessário, até mesmo perfurado lajes, vigas ou cortinas de concreto etc. Por
isso são chamados de cupins de concreto (seu território de ação pode atingir
mais de 800 metros de raio por um complexo sistema de túneis).
Nessa invasão ou locomoção, quando utilizam as redes elétricas, informática
ou de telefonia, acabam destruindo o plástico isolante dos cabos, ocasionando
curto-circuito, incêndios, comprometendo essas redes. Esses insetos também
podem trafegar pelas mantas de impermeabilização e nesse caso irão provocar
perfurações nas mantas e consequentemente infiltrações, que podem
indiretamente comprometer estruturas de concreto ou outros danos.
A fim de se locomoverem constroem túneis subterrâneos, por dentro de
paredes e mais raramente um túnel de terra sobre paredes, ou frestas e, assim,
podem ser detectados sinais de sua presença a olho nu.

FIGURA – (PRAGAS Urbanas. Disponível em http://www.pragas.com.br. Acesso em: 08 abril 2004)

Túneis; sinal típico de ataques dos cupins subterrâneos. Feitos de uma
argamassa de terra, fezes e saliva, que os protegem de predadores, regula
umidade e temperatura e outros contratempos.

Como eles comem as madeiras de dentro para fora, é muito difícil detectá-los.
Se forem estruturas de madeiras como estuques, telhados etc., costumam ruir
antes de se perceber a infestação, provocando acidentes que às vezes são
fatais.
A casta dos soldados é responsável pela proteção da colônia, contra inimigos
naturais e invasão de seu território por outras colônias.
Como podemos observar, esses são os melhores exemplos de uma sociedade
muito bem organizada, possuindo vários mecanismos para manter a
sobrevivência da colônia e espécie, podendo uma colônia permanecer ativa por
centenas de anos, crescendo e se multiplicando. Portanto, qualquer edificação
está sujeita ao ataque dessas pragas; temos que tomar todas as medidas de
prevenção disponíveis, e no caso de infestações nunca combatê-las sem antes
estudá-las devidamente, pois quando aparecem, isso é apenas a ponta de um “
iceberg”. Substituir móveis ou peças de madeira atacadas é como trocar o
prato de comida.
Elaborado por:

Analisado por:

Professor :

Marcelo Gandra Falcone

Alessandra Aparecida Vieira

Marcelo Gandra Falcone

QUANDO IMPRESSO CONSIDERAR PIRATARIA - CÓPIA NÃO AUTORIZADA
UNINOVE

Rev. B

Engenharia de Avaliações e Perícias
Manutenção Predial e Avaliação de Máquinas
e Equipamentos

16/07/2011
Folha 256/424

Outro ponto importante, como já vimos, é que quando esses insetos são
detectados em um edifício, provavelmente a colônia já invadiu, ou está
instalada nos espaços internos da estrutura do edifício, se manifestando em um
armário, batente etc. de um apartamento ou conjunto, por isso tratamentos
localizados não resolvem, dissemina a infestação para outras partes ou
apartamentos. O ninho está alojado na área interna do edifício, que é área
comum e provoca danos nas áreas privativas, que são os armários, batentes
etc. dos apartamentos. Nesse caso a responsabilidade é do condomínio.

Patologia provocada por cupins
Os cupins podem provocar danos de impacto recuperável, parcialmente
recuperável ou irrecuperável.
Impacto recuperável é quando, por exemplo, um ataque de cupins
subterrâneos é detectado inicialmente por uma trilha na parede ou uma árvore,
quando ainda não invadiu a estrutura da edificação e não atacou peças de
madeiras ou mobiliários.
Parcialmente recuperável é quando houver ataque em madeiras, mobiliários,
estruturas, e a parte atacada não compromete funções mecânicas ou físicas a
que essa peça esteja sujeita. Então elas são submetidas a um tratamento para
erradicar a infestação.
Irrecuperável é quando o ataque provocado compromete a resistência
mecânica a que a peça está submetida e deverá ser substituída. Esses danos
em estruturas de telhado, estuques e outras são comuns e de risco crítico à
edificação e seus ocupantes. No caso de ataque de cupins subterrâneos a
manta de impermeabilização ou as redes elétricas também provocam risco
crítico, de incêndio nas redes elétricas e de corrosão ou danos às estruturas
por infiltrações.
Os cupins podem provocar anomalias de ordem natural, ou por falhas de
planejamento e de execução de manutenções, aliado a procedimentos e falta
de prevenção ou de sistemas de controle que deveriam ser instalados ou
efetuados na edificação desde a sua construção.
Fatores que favorecem o ataque: Os fatores mais comuns que favorecem a
infestação por cupins em uma edificação são madeiras de formas
abandonadas, entulhos de construção em aterros, espaços vazios ou
entulhados nas estruturas; solos com materiais orgânicos (como raízes),
condições de umidade (impermeabilização danificada, redes hidráulicas
vazando, áreas mal drenadas).

Elaborado por:

Analisado por:

Professor :

Marcelo Gandra Falcone

Alessandra Aparecida Vieira

Marcelo Gandra Falcone

QUANDO IMPRESSO CONSIDERAR PIRATARIA - CÓPIA NÃO AUTORIZADA
UNINOVE

Rev. B

Engenharia de Avaliações e Perícias
Manutenção Predial e Avaliação de Máquinas
e Equipamentos

16/07/2011
Folha 257/424

Alguns exemplos de procedimentos a serem observados:







Alterações físicas, incluindo eliminação de pontos de contato da madeira
com o solo como locais onde pisos de madeira, batentes ou outras
estruturas de madeira encontram-se em contato constante com o solo ou
alvenaria (fácil acesso entre o local da colônia e a fonte de alimento);
Remoção de toda a madeira e o entulho com celulose da edificação e da
área a ser construída, troncos, raízes de árvores, madeiramento de escora
de contensão, fôrmas etc.;
Tratamento preventivo de toda a madeira que permanecer fixada na
alvenaria ou estrutura;
Redução do excesso de umidade.

Como controlar: O primeiro passo é sempre utilizar medidas e métodos
preventivos, a fim de evitar a invasão.
Estratégias básicas devem ser consideradas para se controlar cupins
subterrâneos:
Sistemas de controle permanente:




Alteração física: qualquer medida que faça com que a edificação fique
menos susceptível ao acesso ou invasão de cupins;
Tratamento do solo ou barreira química;
Tratamento da madeira fixa à edificação.

Obs.: Devido aos riscos inerentes ao tratamento, o controle de cupins
subterrâneos requer obrigatoriamente a contratação de uma empresa
especializada para a realização do serviço.
Métodos Preventivos contra infestações de CUPINS SUBTERRÂNEOS.
O método a ser escolhido deve ser compatível com o tipo de edificação, ter
eficiência comprovada, poder controlar a praga a qualquer tempo, ser seguro
ao meio ambiente etc.
São três os métodos preventivos disponíveis hoje no mercado, mas todos
apresentam pontos positivos e negativos, que dissertaremos a seguir.

Elaborado por:

Analisado por:

Professor :

Marcelo Gandra Falcone

Alessandra Aparecida Vieira

Marcelo Gandra Falcone

QUANDO IMPRESSO CONSIDERAR PIRATARIA - CÓPIA NÃO AUTORIZADA
UNINOVE

Rev. B

Engenharia de Avaliações e Perícias
Manutenção Predial e Avaliação de Máquinas
e Equipamentos

16/07/2011
Folha 258/424

O primeiro método a ser abordado é o SISTEMA PERMANENTE DE
CONTROLE formado por uma rede de irrigação implantada estrategicamente
no solo.

FIGURA – (PRAGAS Urbanas. Disponível em http://www.pragas.com.br. Acesso em: 08 abril 2004)

Essa rede deve ser instalada em todo o perímetro externo e interno da
edificação, paralela a todas as paredes ou baldrames em contato com o solo,
pelos dois lados (quando possível) e também linhas paralelas sob os pisos nos
ambientes térreos. Essas redes também devem ser instaladas junto às cortinas
de contensão em construções ou garagens subterrâneas, assim como entre
paredes duplas ou geminadas.

Os pontos positivos desse sistema:











O sistema é permanente, a qualquer tempo e
necessidade permite repor os produtos que formarão
as barreiras químicas no solo;
Protege com deficiência e edificação contra essas
pragas;
Permite utilizar baixas quantidades de produtos e de
menor poder residual, sendo mais seguros ao meio
ambiente (pode-se optar por produtos biológicos);
Para efetuar o tratamento não é preciso perfurar pisos
e paredes, evitando prejuízos à edificação;
O ambiente não precisa ser desocupado, podendo ser
usado normalmente, inclusive durante o período do
serviço;
Para realizar os serviços de reposição não é
necessário adentrar a edificação;
O tempo de serviço para tratamentos futuros diminui
pelo menos em 80%;

Elaborado por:

Analisado por:

Professor :

Marcelo Gandra Falcone

Alessandra Aparecida Vieira

Marcelo Gandra Falcone

QUANDO IMPRESSO CONSIDERAR PIRATARIA - CÓPIA NÃO AUTORIZADA
UNINOVE

Engenharia de Avaliações e Perícias
Manutenção Predial e Avaliação de Máquinas
e Equipamentos







Rev. B
16/07/2011
Folha 259/424

Baixo custo para os tratamentos ou reposição;
O tratamento pode ser feito em caráter preventivo ou
curativo;
Não precisa desocupar armários para efetuar o
controle;
Não deixa cheiro no ambiente;
Pode ser aplicado em qualquer tipo de edificação.

Os pontos negativos desse sistema:




O sistema só pode ser instalado durante o período de
construção ou de reforma do imóvel, pois a rede é
instalada no solo, abaixo do contrapiso;
Poucas empresas possuem essa tecnologia.

O segundo método é o de ISCAGEM.
Esse método utiliza isca atrativa para detectar a presença de cupins e atraí-los,
e quando então a colônia identifica aquele ponto para sua alimentação,
substitui-se a isca atrativa por uma isca de controle, onde os insetos levarão
para o ninho o alimento envenenado, podendo assim eliminar a colônia.

FIGURA – (PRAGAS Urbanas. Disponível em http://www.pragas.com.br. Acesso em: 08 abril 2004)

Pontos positivos:
 Não deixa cheiro de inseticidas no ambiente;
 Para efetuar o tratamento não é preciso perfurar pisos e paredes;
 Não é necessário desocupar armários para efetuar o controle;
 Não precisa desocupar o ambiente.
Pontos negativos:
 Alguns tipos de edificação não permitem a aplicação desse método,
como edificações germinadas ou calçadas em redor;
Elaborado por:

Analisado por:

Professor :

Marcelo Gandra Falcone

Alessandra Aparecida Vieira

Marcelo Gandra Falcone

QUANDO IMPRESSO CONSIDERAR PIRATARIA - CÓPIA NÃO AUTORIZADA
UNINOVE

Engenharia de Avaliações e Perícias
Manutenção Predial e Avaliação de Máquinas
e Equipamentos










Rev. B
16/07/2011
Folha 260/424

O resultado do controle depende da praga localizar as iscas atrativas;
Se o efeito das iscas de controle for detectado pela colônia o método
não funciona;
A praga poderá provocar danos a mobiliários e a edificação até se
obter o controle;
O tratamento precisa ter acompanhamento constante e permanente,
gerando custos indefinidos;
Não é eficiente para algumas das espécies de cupins subterrâneos;
Não há garantia de resultado e nem de tempo para atingir o controle;
Para realizar os serviços regulares de monitoramento é necessário
adentrar a edificação;
Poucas empresas possuem essa tecnologia.

O MÉTODO TRADICIONAL ou barreiras químicas no solo.
Para construir as barreiras químicas, é necessário efetuar o tratamento de solo,
formando muros contínuos e homogêneos, sob a edificação e ao redor de
todos os pontos de contato das estruturas, paredes etc. com o solo (terra).

FIGURA – (PRAGAS Urbanas. Disponível em http://www.pragas.com.br. Acesso em: 08 abril 2004)

A seta branca mostra onde são feitos os furos para o tratamento do solo para o
controle de cupins subterrâneos, de maneira a formar uma barreira química
contra a entrada desses insetos. Em cinza é mostrado o piso e em marrom, a
parede da estrutura. Os pisos de mármore, granito e porcelanatos sofrem
danos irreparáveis com as perfurações. Para a construção da barreira química,
quando for piso coberto de cimento, cerâmico etc., é necessário perfurá-lo para
a posterior injeção dos produtos por meio dos furos.
Essas barreiras levarão à morte instantânea os indivíduos presentes, e
permanecerão ativas por meio da ação residual dos produtos, impedindo
futuros ataques às áreas tratadas. Os produtos permitidos hoje para essa
função persistem por dois a quatro anos.

Elaborado por:

Analisado por:

Professor :

Marcelo Gandra Falcone

Alessandra Aparecida Vieira

Marcelo Gandra Falcone

QUANDO IMPRESSO CONSIDERAR PIRATARIA - CÓPIA NÃO AUTORIZADA
UNINOVE

Rev. B

Engenharia de Avaliações e Perícias
Manutenção Predial e Avaliação de Máquinas
e Equipamentos

16/07/2011
Folha 261/424

Os produtos ou ingredientes ativos que formam as barreiras químicas sofrem
decomposição por umidade, agentes químicos, ação de fauna e flora etc.,
sendo necessário repetir os tratamentos periodicamente.

FIGURA – (PRAGAS Urbanas. Disponível em http://www.pragas.com.br. Acesso em: 08 abril 2004)

Nesse método, para repetir ou repor os produtos em tratamentos futuros é
necessário perfurar pisos e paredes, tendo que se refazer todo o serviço. Por
isso deve-se utilizar grandes quantidades de inseticidas e de longa ação
residual para aumentar o período de controle, o que também aumenta o risco
de contaminação do meio ambiente.
Pontos positivos:
 Pode ser aplicado em qualquer tipo de edificação;
 Protege com eficiência a edificação contra essas pragas;
 Pode ser efetuado em edificações já construídas.
Pontos negativos:
 O tratamento dura de dois a quatros anos e tem que ser refeito;
 É necessário perfurar pisos, no caso de edificações já finalizadas,
causando mais prejuízos;
 É necessário desocupar o local para o tratamento;
 Nos tratamentos futuros ou de reposição é necessário novamente
perfurar o piso, provocando danos;
 É preciso aplicar enormes quantidades de produtos, e com o maior
poder residual;
 O método oferece risco ambiental;
 O tempo para o serviço é longo e com custo alto;
 Oferece riscos de perfurar redes hidráulicas, elétricas, entre outros,
para execução do serviço.
Tratamentos curativos: São necessários quando a praga já invadiu a
edificação. Esses tratamentos sempre são caros e traumáticos.
Isso porque geralmente quando se percebe a infestação, os danos já são
elevados, e assim os métodos de tratamentos serão tradicional ou o de
iscagem, ou um mescla deles.

Elaborado por:

Analisado por:

Professor :

Marcelo Gandra Falcone

Alessandra Aparecida Vieira

Marcelo Gandra Falcone

QUANDO IMPRESSO CONSIDERAR PIRATARIA - CÓPIA NÃO AUTORIZADA
UNINOVE

Rev. B

Engenharia de Avaliações e Perícias
Manutenção Predial e Avaliação de Máquinas
e Equipamentos

16/07/2011
Folha 262/424

Na opção do método tradicional ou de barreiras químicas é preciso perfurar
pisos, paredes, estruturas, colocando em risco as redes hidráulicas e elétricas,
provocando danos em pisos e paredes, porcelanatos, granitos etc. Também é
necessário desocupar armários, retirar as pessoas do local, mais o custo do
tratamento que é alto, contribuindo para um verdadeiro caos. Se a opção for o
de iscagem, até obter-se a solução pode demorar e a perda de mais mobiliários
é inevitável, o custo é mais caro, pois o serviço tem que ser permanente.

Cupins de madeira seca – características
Todas as espécies de cupins adaptadas ao meio urbano se alimentam da
celulose da madeira, ou de papéis, couro, tecidos etc. A diferença básica entre
o primeiro grupo (subterrâneos), como já citamos, nidificam no solo, mas as
espécies desse segundo grupo têm seus ninhos localizados na própria
madeira. Outra diferença é que este segundo grupo deixa como rastros
grânulos amontoados (fezes) próximos à madeira infestada, o que torna fácil
detectá-lo.
Os reprodutores das espécies de cupins de madeira seca após o vôo nupcial
irão se alojar em rachaduras ou fendas na madeira e nela constituirão a
colônia, por isso o ataque fica restrito a uma peça ou móvel, e também explica
porque jogando fora o móvel ou madeira atacada se livra também do problema,
o que não acontece com o primeiro grupo. Essas espécies são menos
agressivas que a anterior; a população de insetos de uma colônia é bem menor
e se o móvel fosse tratado preventivamente pelo fabricante, não teríamos o
ataque.
Medidas Preventivas: Existem ainda uma série de medidas que podem ser
consideradas preventivas ao ataque de cupins de madeira seca. São elas.:




Uso de madeiras tratadas durante a construção do imóvel ou montagem
dos móveis;
Uso de madeiras naturalmente mais resistentes;
Proteção da superfície exterior das madeiras com tintas, vernizes ou outras
coberturas apropriadas, com o objetivo de tapar frestas e ranhuras onde os
cupins possam se alojar.

Coleópteros – características
Coleópteros é a ordem dos insetos, com cerca de 900 espécies xilófagas
descritas. Esses insetos são conhecidos por brocas ou caranchos. Esses
insetos não são sociais, apesar de em uma infestação haver vários indivíduos.
Elaborado por:

Analisado por:

Professor :

Marcelo Gandra Falcone

Alessandra Aparecida Vieira

Marcelo Gandra Falcone

QUANDO IMPRESSO CONSIDERAR PIRATARIA - CÓPIA NÃO AUTORIZADA
UNINOVE

Rev. B

Engenharia de Avaliações e Perícias
Manutenção Predial e Avaliação de Máquinas
e Equipamentos

16/07/2011
Folha 263/424

As espécies variam de tamanho desde -1 mm até 200 mm de comprimento,
tendo as mais comuns cerca de 5 mm.
O ciclo de vida desses insetos passa por quatro estágios distintos: ovo, larva,
pupa e adulto. O ataque inicia-se na ovoposição (de 30 até 400 ovos) na
superfície cortical da madeira (período de incubação de uma a três semanas),
que após a eclosão desses ovos, as larvas penetram pelos poros ou aberturas
naturais da madeira, não deixando sinais de ataque, alimentando-se
principalmente de alburnos já secos e em alguns casos, atacam também o
cerne. Geralmente a infestação ou ovoposição acontece no período de
fabricação ou serraria, e se manifestam alguns anos depois.
As espécies xilófagas na sua maioria atacam a madeira no estágio larval
chamado pelos marceneiros de “brocas”. Nessa fase é que passam o maior
período de suas vidas, de um a quatro anos, mas há relatos de até dezesseis
anos, dependendo da espécie e condições ambientais, onde se desenvolverão
e se alimentação, degradando a madeira.
Somente então quando essa larva, depois de passar pelo estágio de pupa,
dentro da madeira, atinge a fase adulta. Então um pequeno besouro alado
chamado de caruncho sai da madeira e é quando visualizamos pequenos
orifícios e o pó fino como de farinha ou fubá.
Quando saem da madeira para copularem estão na fase adulta e viverão pouco
tempo, questão de meses, e na maioria das espécies não se alimentarão mais
da madeira, tendo nesse estágio o objetivo único de reprodução.
No controle preventivo, tanto dos cupins de madeira seca como dos
coleópteros, o método indicado é o de saturação e impregnação das fibras das
madeira, por meio de pulverizações, pincelamento, imersão com produtos
veiculados em solventes específicos a fim de penetrar nas fibras da madeira.
Esses tratamentos preventivos são simples e baratos, pena que os fabricantes
ou madeireiros não se conscientizaram disso e assim evitariam muitos
prejuízos.
Nos métodos de controle curativos, como geralmente a madeira está
impermeabilizada com tintas ou vernizes, os tratamentos já citados são poucos
eficientes. Recomenda-se quando possível o método de expurgo. Esses
tratamentos são mais caros e raramente compensa fazê-los não só pelo valor,
pois precisam ser removidos para um local apropriado.

Elaborado por:

Analisado por:

Professor :

Marcelo Gandra Falcone

Alessandra Aparecida Vieira

Marcelo Gandra Falcone

QUANDO IMPRESSO CONSIDERAR PIRATARIA - CÓPIA NÃO AUTORIZADA
UNINOVE

Rev. B

Engenharia de Avaliações e Perícias
Manutenção Predial e Avaliação de Máquinas
e Equipamentos

16/07/2011
Folha 264/424

Como diferenciar infestação de cupins subterrâneos, cupins de madeira
seca e os coleópteros:
Cupins subterrâneos
1.Não deixam sinais de
ataque e raramente
constroem túneis de
terra.
2.Os reprodutores e o
ninho estão alojados no
subsolo, só os operários
vão buscar alimento.

Cupins de madeira seca
1.Deixam como sinal de
ataque grânulos
amontoados, que são seus
excrementos removidos da
colônia.
2.Os reprodutores e todo o
ninho estão alojados na
madeira ou móvel que está
sendo atacado.

5.São insetos sociais.
6.Conhecidos por
bichinhos da luz, aleluias

2.Não existe ninho, os
indivíduos são
independentes,
alimentando-se da
madeira durante a fase
larval.
3.Jogar fora o móvel
elimina o problema.
4.Vivem na mesma
madeira, mas isolados
uns dos outros.
5.Não são insetos sociais.
6.Conhecidos por brocas
ou carunchos.

7.Ataque de média
intensidade
Cupins de madeira seca

7.Ataque de baixa
intensidade.
Coleópteros

8.Uma colônia pode
chegar a milhares de
indivíduos.
9.A solução é tratar os
móveis atacados ou
eliminá-los.
10.Atacam madeiras
brancas ou de baixa
resistência química como o
pinho,pínus,compensados
de portas,armários
embutidos,móveis etc.

8.Em uma peça de
madeira chega a muitas
centenas de indivíduos.
9.A solução é tratar os
móveis atacados ou
eliminá-los.
10.Atacam madeiras
brancas ou de baixa
resistência química,como
pinho,pínus,compensados
de portas,armários
embutidos,móveis etc.

3.Jogar fora o móvel não
adianta.
Fundam novas colônias
no solo ou na estrutura
da edificação.
5.São insetos sociais.
6.Conhecidos por
aleluias e cupins de
concreto.
7.Ataque intenso e
agressivo.
Cupins subterrâneos

3.Jogar fora o móvel
elimina o problema.
4.Fundam novas colônias
na madeira e vivem nela.

8. Uma colônia pode
chegar a milhões de
indivíduos.
9.A solução é tratar toda
a edificação e subsolo.
10.Podem atacar
qualquer tipo de madeira
(peroba,ipê,pinho
etc),dando preferência a
madeiras brancas, desde
que sejam fixas à
edificação, como
batentes,rodapés,armári
os embutidos etc.

Coleópteros
1.Deixam como sinal de
ataque pó fino de
madeira, como fubá.

Elaborado por:

Analisado por:

Professor :

Marcelo Gandra Falcone

Alessandra Aparecida Vieira

Marcelo Gandra Falcone

QUANDO IMPRESSO CONSIDERAR PIRATARIA - CÓPIA NÃO AUTORIZADA
UNINOVE

Rev. B

Engenharia de Avaliações e Perícias
Manutenção Predial e Avaliação de Máquinas
e Equipamentos

16/07/2011
Folha 265/424

Fungos
São vegetais rudimentares, desprovidos de clorofila, parasitos, microscópicos e
nutrem-se de material orgânico em decomposição (saprófitos). Os fungos
decompõem a madeira por enzimas que reagem a nível molecular, quebrando
a estrutura da mesma, mas para sobreviverem precisam de oxigênio e água.
Os sinais visíveis de ataque de fungos são quebra, ruptura, esfacelamento da
madeira ou o que denominamos de orelha de pau, que nada mais são do que
órgãos de frutificação que produzem grandes quantidades de minúsculas
“sementes”, denominadas esporos. Levados pelo vento em condições
favoráveis de umidade, temperatura e aeração, os esporos germinam,
produzindo finíssimos filamentos denominados hifas, que penetram na
madeira. Essas hifas formam o corpo vegetativo do fungo, ou o micélio. O
apodrecimento da madeira ocorre devido à atuação de enzimas, ou seja,
compostos químicos produzidos pelo fungo.
1. Podemos classificar os fungos em três grupos:
a.) Fungos Superficiais: desenvolvem-se apenas na superfície da madeira,
nutrindo-se de resíduos nela contidos. Não comprometem a resistência
mecânica e a estética da madeira. Ex.: Bolores e Míldios.
b.) Fungos Manchadores: apresentam hifas pigmentadas, responsáveis pela
coloração. Atacam o tecido parenquimatoso (tecido de armazenamento),
alimentando-se de substâncias armazenadas (amido, açúcares, proteínas).
c.) Fungos Apodrecedores: podemos subdividi-los em:
 Fungos de Podridão Mole: atacam a parede celular e a lignina, decompondo
a madeira totalmente, formando uma pasta mole no local de ataque;
 Fungos de Podridão Parda: atacam a parede celular, degradando a celulose
e a hemicelulose, transformando-as em substâncias solúveis;
 Fungos de podridão Branca: atacam a lignina deixando a celulose que é
branca.

2. Condições para desenvolvimento dos fungos:






Presença de Oxigênio (O2);
Temperatura ideal entre 25º a 30ºC e não se desenvolvem abaixo de 0º e
acima de 50ºC;
Umidade ideal é o Ponto de Saturação das Fibras, onde a madeira
apresenta água e oxigênio em quantidades ideiais;
PH ideal entre 4,5 e 6,0 , sendo limite abaixo de 2,0 e acima de 9,0;
Presença de alimento (madeira).

Elaborado por:

Analisado por:

Professor :

Marcelo Gandra Falcone

Alessandra Aparecida Vieira

Marcelo Gandra Falcone

QUANDO IMPRESSO CONSIDERAR PIRATARIA - CÓPIA NÃO AUTORIZADA
UNINOVE

Rev. B

Engenharia de Avaliações e Perícias
Manutenção Predial e Avaliação de Máquinas
e Equipamentos

16/07/2011
Folha 266/424

3. Sintomas de ataque de fungos:






Mudanças de coloração da madeira;
Amolecimento da madeira;
Mudança na densidade, perda de peso;
Mudança de odor, cheiro desagradável;
Aparecimento de “orelha de pau”.

4. Recomendações para evitar o apodrecimento com detalhes de projeto:











Manter a madeira seca abaixo de 20% de umidade;
Suprimir o oxigênio (deixar a madeira imersa em água ou abaixo do lençol
freático);
Batentes ou portais se estiverem 1 cm ou mais acima do piso acabado,
mesmo de madeiras moles, não apodrecem e podem durar mais que os de
peroba;
Telhados com beirais longos protegem as janelas de madeira da água e do
sol;
Evitar pontos de condensação de água;
Aplicar impermeabilizantes em toda a madeira, inclusive nos encaixes, nas
extremidades de batentes, apoios das vigas e colunas etc.;
Calçadas laterais inclinadas para evitar acúmulo de água junto aos
alicerces;
Deixar espaço de ventilação sob os assoalhos, exemplo: porão;
Tratamento preventivo com produtos químicos apropriados.

5. Decomposição por agentes abióticos
È a alteração indesejada provocada por agentes físicos, mecânicos e químicos.









Irradiação solar e raios ultravioleta degradam a madeira provocando
fotodecomposição, alterações químicas nas cadeias de polissacarídeos da
celulose;
Desgastes mecânicos ou abrasão, vento, roeduras de animais; exemplo:
escadas, assoalhos, dormentes etc.;
Decomposição por agentes físicos, chuvas, fogo (até 100ºC vaporização da
umidade da madeira, entre 93º e 370ºC volatilização dos extrativos e o
ponto de ignição é 260ºC);
Ação de produtos químicos altamente ácidos ou básicos e alguns solventes
degradam e dissolvem a madeira (ph maior que 8 e menor que 2), também
podemos ressaltar o óxido de ferro provocado pela ferrugem de pregos etc.;
Aquecimento prolongado causa mudança na estrutura celular, formando
madeira quebradiça.

Elaborado por:

Analisado por:

Professor :

Marcelo Gandra Falcone

Alessandra Aparecida Vieira

Marcelo Gandra Falcone

QUANDO IMPRESSO CONSIDERAR PIRATARIA - CÓPIA NÃO AUTORIZADA
UNINOVE

Rev. B

Engenharia de Avaliações e Perícias
Manutenção Predial e Avaliação de Máquinas
e Equipamentos

16/07/2011
Folha 267/424

A seguir serão relatados alguns aspectos de determinadas pragas:
FORMIGAS URBANAS
Em função de seus hábitos de vida, são definidas como insetos sociais, tendo
em suas colônias indivíduos e reprodutores estéreis e são capazes de
transportar até cinqüenta vezes o seu peso.
As formigas possuem uma dieta alimentar bastante variada; seu aparelho bucal
é adaptado para mastigar vegetais (alimentos, folhas, madeiras etc.), animais,
minerais, açúcares e ainda ingerir líquido.
Além disso, as formigas podem também espalhar doenças, contaminadas por
vírus, fungos, bactérias, danificar aparelhos elétricos ou eletrônicos, roupas,
tecidos, certos objetos de borracha ou remover a proteção de cabos
telefônicos, fios elétricos etc.
As formigas, além de extremamente organizadas, possuem algumas
características importantes que facilitam sua disposição, principalmente nos
ambientes urbanos. Podemos citar a poliginia, presença de várias rainhas,
populações unicolônias, colônias divididas e abrigadas em vários locais,
fragmentação da colônia etc.
Qualquer forma de controle a ser adotada deve ter como objetivo as colônias
como um todo e não somente as operárias, que realizam atividades externas
ao ninho.
Uma das características principais das formigas urbanas é a forte tendência em
migrar, ou seja, frequentemente mudam a colônia de lugar, tanto quando
perturbadas, como quando em alta densidade populacional.
ROEDORES – RATOS
Alguns danos causados pelos ratos:







Consumo direto de alimentos;
Contaminação e danos nos alimentos;
Danos estruturais;
Transmissão de doenças;
Fontes de reinfestação em áreas adjacentes;
Custos associados com a operação de controle.

Métodos de Prevenção: Alimento e abrigo são, também, os fatores essenciais
para promover a infestação dessas pragas numa determinada área;
Elaborado por:

Analisado por:

Professor :

Marcelo Gandra Falcone

Alessandra Aparecida Vieira

Marcelo Gandra Falcone

QUANDO IMPRESSO CONSIDERAR PIRATARIA - CÓPIA NÃO AUTORIZADA
UNINOVE

Rev. B

Engenharia de Avaliações e Perícias
Manutenção Predial e Avaliação de Máquinas
e Equipamentos

16/07/2011
Folha 268/424

eliminando-se esses fatores podemos evitar a presença indesejável desses
roedores. Algumas medidas devem ser empregadas na rotina diária, como por
exemplo: remover diariamente o lixo, acondicionar corretamente os alimentos,
não jogar lixo em terrenos ou córregos, manter os jardins em bom estado de
conservação, remover os entulhos, vedar devidamente esgotos e canis
efluentes desativados, não acumular materiais em locais como depósitos e
garagens.
Controle da praga: Conforme já citado, a presença de roedores está também
associada à disponibilidade de alimento, água e abrigo. Acrescentando a esses
fatores as características comportamentais e reprodutivas desses animais,
encontramos uma situação em que o controle somente alcançará o efeito
desejado com a adoção de medidas integradas. O controle integrado de
roedores envolve basicamente as seguintes etapas:
a.) Adoção de Medidas Sanitárias para o Controle: A eliminação de fontes de
alimentos e higienização da área são essenciais para o sucesso no controle de
roedores.







Manter a área externa limpa e sem entulhos, materiais empilhados
(madeiras, canos, telhas), mato, grama devidamente aparada, poda de
galhos de árvores que se projetem sobre a edificação;
Eliminar ou proteger as fontes de água: fossos, valas, poças
estagnadas, poços, caixas d’água e outros reservatórios;
Armazenamento adequado e protegido de cereais e forragens,
alimentos, rações etc.;
Acondicionamento do lixo em recipientes à prova de redores, ou que
impossibilite seu acesso;
Equipamentos adequados nas instalações hidráulicas e rede de esgoto
como ralos telados, válvulas de sentido único de passagem etc.

b.) Controle Químico: Atualmente é o método mais utilizado para eliminação de
infestações existentes. Consiste na utilização de substâncias tóxicas
incorporadas a iscas que serão oferecidas em locais de trânsito ou de visitação
desses animais, entretanto tais substâncias contidas nas iscas também são
tóxicas para outros mamíferos como gatos, cães e o próprio homem.
c.) Controle Mecânico: Consiste na utilização de sistemas de proteção física
contra a entrada de roedores na área, e sistemas de captura para remoção e
posterior eliminação desses roedores. Devemos eliminar aberturas ou frestas
maiores que 0,5 cm, impedindo a passagem dos ratos; instalar mecanismos
para impedir o refluxo de efluentes nos vasos sanitários; colocar dispositivos
impedindo a escalada em fios, paredes, tubulações, encanamentos e até
mesmo em palmeiras localizadas nos jardins.
Elaborado por:

Analisado por:

Professor :

Marcelo Gandra Falcone

Alessandra Aparecida Vieira

Marcelo Gandra Falcone

QUANDO IMPRESSO CONSIDERAR PIRATARIA - CÓPIA NÃO AUTORIZADA
UNINOVE

Rev. B

Engenharia de Avaliações e Perícias
Manutenção Predial e Avaliação de Máquinas
e Equipamentos

16/07/2011
Folha 269/424

Os dispositivos de captura podem ser distribuídos estrategicamente pela área,
como ratoeiras, armadilhas adesivas e gaiolas. A utilização de barreira elétrica
ou sonora tem como fatores limitantes o seu custo, manutenção, habilidades do
animal em se adaptar e riscos de acidentes.
d.) Controle físico: A utilização de aparelhos que emitem ultrassom, vibradores,
segundo diversos autores deve ser mais bem estudada para uma conclusão
definitiva sobre essa técnica. Todos os tipos de controle existentes possuem
vantagens e desvantagens, que deverão ser analisadas por empresa
especializada.

POMBOS
Os pombos são aves comuns em quase todas as cidades brasileiras e em
todos os meses do ano, sendo que poucos sabem do perigo à saúde pública
que esses animais significam. Suas fezes, além de transmitirem doenças,
sujam e destroem o patrimônio, pois são ácidas e deterioram materiais. Seus
ninhos entopem calhas e quando ocorrem próximo a aeroportos podem
ocasionar acidentes à aviação.
Medidas de Controle:
a) Medidas de médio/longo prazo: São medidas de controle que irão interferir
diretamente na redução populacional dos pombos.
 Emprego de substâncias anticoncepcionais;
 Uso de pombas de reprodução controlada.
b) Medidas a curto prazo: Representam medidas de controle que irão afastar
os pombos das proximidades afetadas, sem influir no nível populacional. São,
em sua maioria, medidas de controle que funcionam como barreiras físicas que
impedem o pouso das aves nas superfícies tratadas.
 A supressão alimentar torna-se fator limitante prioritário de controle, com
resultados diretos na redução do potencial reprodutivo e da densidade
populacional dessas aves;
 Inclinação de superfícies de pouso;
 Emprego de acessórios desestabilizadores de pouso;
 Vedação de espaços;
 Emprego de elementos assustadores (visuais e auditivos);
 Persuasão do pouso por substâncias repelentes;
 Equipamentos que impedem o acesso como cercas eletrificadas, telas,
epículas etc.;
 Captura por armadilhas;
 Limpeza dos locais infestados;
 Desinfecção das áreas.
Elaborado por:

Analisado por:

Professor :

Marcelo Gandra Falcone

Alessandra Aparecida Vieira

Marcelo Gandra Falcone

QUANDO IMPRESSO CONSIDERAR PIRATARIA - CÓPIA NÃO AUTORIZADA
UNINOVE

Rev. B

Engenharia de Avaliações e Perícias
Manutenção Predial e Avaliação de Máquinas
e Equipamentos

16/07/2011
Folha 270/424

Informações úteis









Os cupins não se alimentam do concreto, podem produzir ligeiro
desgaste apenas para obter passagens para os túneis, entre os diversos
componentes da edificação;
Dados de instituições comprovam a alta infestação de cupins
subterrâneos; pesquisas indicam que 30% das edificações (edifícios e
residências) em São Paulo apresentam a infestação ou já foram
atacadas por cupins, e a infestação cresce de forma geométrica, sendo
que toda e qualquer edificação não protegida será atingida um dia;
As fezes de pombos devem ser umedecidas antes de serem retiradas,
para evitar a inalação de esporos de fungos e outras formas causadoras
de doenças;
No Brasil todo existe cerca de 20 espécies de formigas distribuídas
pelas cidades;
Antes de contratar serviços de Controle de Pragas Urbanas, verifique se
a empresa tem alvará de funcionamento expedido pelo Centro d
Vigilância Sanitária e usa produtos devidamente registrados no
Ministério da Saúde.

Perguntas freqüentes
1. Quando um ataque de cupins é de responsabilidade da construtora ou de um
fabricante de móveis?
R: Geralmente, todo ataque causado por qualquer espécie de inseto nas
madeiras entregues pela construtora é de sua responsabilidade, e no caso de
móveis, quando atacado por cupins subterrâneos, o fabricante geralmente não
é o responsável.
2. Quando uma infestação de cupins em área privativa é de responsabilidade
do condomínio ou do condômino?
R: No caso de ataque de cupins de madeira seca ou brocas, geralmente o
responsável é o condômino ou morador, no caso de cupins subterrâneos
geralmente a responsabilidade é do condomínio.
3. Como descobrir que em um determinado local há cupins?
R: Descobre-se a infestação de cupins buscando-se principalmente as pistas
deixadas por esses insetos nos locais atacados.
R: Os cupins de madeira seca liberam os resíduos fecais secos e granulados
que se acumulam próximo às peças afetadas. Após os cupins eliminarem parte
dos resíduos fecais pelos orifícios na madeira, eles os vedam novamente com
uma película normalmente de coloração marrom.
O principal indício da infestação de cupins de solo é a presença de túneis em
paredes, lajes, rodapés, molduras de portas etc. Nos armários embutidos
Elaborado por:

Analisado por:

Professor :

Marcelo Gandra Falcone

Alessandra Aparecida Vieira

Marcelo Gandra Falcone

QUANDO IMPRESSO CONSIDERAR PIRATARIA - CÓPIA NÃO AUTORIZADA
UNINOVE

Rev. B

Engenharia de Avaliações e Perícias
Manutenção Predial e Avaliação de Máquinas
e Equipamentos

16/07/2011
Folha 271/424

devem ser cuidadosamente inspecionadas as peças internas. É freqüente
também a observação dos túneis ou resíduos nos dutos elétricos. Além disso,
as revoadas no ambiente interno ou externo, no solo, em árvores, é indício
seguro da infestação.
4. Por que os cupins aparecem no calor?
R: Nos meses quentes, após o inverno, apenas ocorrem as revoadas, que são
a liberação dos reprodutores alados (com asas) com a finalidade de procriação
e fundação de novas colônias. Portanto, quem aparece são os alados
provenientes de colônias já existentes e bem desenvolvidas, que podem
permanecer ativas durante muitos anos.
5. Siriri é cupim?
R: O siriri é a casta dos cupins responsável pela reprodução, onde os
indivíduos em sua forma alada tentarão se instalar nos locais propícios para
iniciar uma nova colônia. Se forem siriri de cupins de madeira seca tentarão se
instalar diretamente no interior da madeira. Se forem siriris de cupins de solo,
procurarão o solo.
R: Grande parte dos siriris morre durante ou após a revoada, mas os casais
bem-sucedidos irão acasala e fundar novas colônias.
6. Os pombos transmitem doenças?
R: Sim, por mio das fezes que podem conter fungos e outros microrganismos
causam doenças graves como a criptococose, psitacose e salmonelose.

Figura: Sujeira de Pombos

Elaborado por:

Analisado por:

Professor :

Marcelo Gandra Falcone

Alessandra Aparecida Vieira

Marcelo Gandra Falcone

QUANDO IMPRESSO CONSIDERAR PIRATARIA - CÓPIA NÃO AUTORIZADA
UNINOVE

Rev. B

Engenharia de Avaliações e Perícias
Manutenção Predial e Avaliação de Máquinas
e Equipamentos

16/07/2011
Folha 272/424

9.14 Equipamentos de lazer

Visando proporcionar entretenimento aos seus moradores, os equipamentos de
lazer são encontrados com freqüência nos condomínios residenciais; e entre os
tipos mais freqüentes, este trabalho irá abordar as piscinas e os playgrounds.

Figura: Quadra Poliesportiva

9.14.1 Piscinas
a) Descrição do Sistema
As piscinas são o conjunto das instalações (tanque, solário, casa de máquinas
e vestiários), destinadas às atividades aquáticas. Os tipos de piscinas mais
encontrados são com estrutura em concreto ou alvenaria armada; e
revestimento em cerâmica, fibra de vidro ou vinil. O esquema básico de
funcionamento do sistema de recirculação e tratamento da água de uma
piscina é:

Figura: Piscina – Sistema de Filtragem
Elaborado por:

Analisado por:

Professor :

Marcelo Gandra Falcone

Alessandra Aparecida Vieira

Marcelo Gandra Falcone

QUANDO IMPRESSO CONSIDERAR PIRATARIA - CÓPIA NÃO AUTORIZADA
UNINOVE

Rev. B

Engenharia de Avaliações e Perícias
Manutenção Predial e Avaliação de Máquinas
e Equipamentos

16/07/2011
Folha 273/424

Finalidade do Sistema. A finalidade da piscina em um condomínio residencial
é:
• proporcionar a convivência, o entretenimento e a prática de esportes aos
seus moradores,
• valorizar os imóveis nos quais estão instalados.
Principais Anomalias As anomalias mais freqüentes nas piscinas são:
• tratamento inadequado da água,
• desgaste do revestimento do tanque ou do solário,
• falta de manutenção ou manejo incorreto dos equipamentos,
• vazamentos no tanque de origem estrutural, nas instalações ou no
sistema de impermeabilização.
Recomendações Técnicas. As recomendações técnicas mais importantes
são:
• propiciar treinamento ao pessoal do condomínio responsável pela
manutenção;
• promover exames regulares da qualidade da água;
• manutenção dos equipamentos executada por empresa idônea;
• contratação de técnico capacitado para levantar as causas e definir os
reparos das eventuais anomalias existentes no conjunto;
• instituir campanha dos princípios básicos de segurança e de saúde no uso da
piscina.
Você sabia?




Você sabia que as crianças só devem ter acesso às piscinas
acompanhadas por um responsável?
Você sabia que protetores e bronzeadores dificultam e comprometem a
filtragem da água da piscina?
Você sabia que pessoas com cabelos longos devem usar toucas de
natação ou prendê-los junto à nuca, quando utilizando uma piscina

Figura: Piscina – Vista superior
Elaborado por:

Analisado por:

Professor :

Marcelo Gandra Falcone

Alessandra Aparecida Vieira

Marcelo Gandra Falcone

QUANDO IMPRESSO CONSIDERAR PIRATARIA - CÓPIA NÃO AUTORIZADA
UNINOVE

Rev. B

Engenharia de Avaliações e Perícias
Manutenção Predial e Avaliação de Máquinas
e Equipamentos

16/07/2011
Folha 274/424

9.14.2 Playgrounds
Descrição do Sistema
Playgrounds são os equipamentos para brincar, destinados às atividades de
lazer infantil. Tradicionalmente os playgrounds eram executados em madeira
aparelhada ou em ferro pintados; porém atualmente, os mais encontrados são
em madeira bruta tratada ou em plástico. Os brinquedos dos playgrounds
podem ser móveis (balanço, roda-roda, gangorra), estáticos (escorregador,
casinha de boneca) ou integrados. Foram projetados para a instalação
permanente ao ar livre, e sem sistema motriz.

Figura: Playground

Finalidade do Sistema
A finalidade do playground em um condomínio residencial é:
• promover o desenvolvimento físico e social das crianças residentes no
empreendimento,
• valorizar os imóveis nos quais estão instalados.
Principais Anomalias
As anomalias mais freqüentes nos playgrounds são:
• falta de manutenção no equipamento ou no seu entorno;
• desgaste de peças no equipamento pela sua utilização;
• vandalismo ou mau uso dos equipamentos.
Elaborado por:

Analisado por:

Professor :

Marcelo Gandra Falcone

Alessandra Aparecida Vieira

Marcelo Gandra Falcone

QUANDO IMPRESSO CONSIDERAR PIRATARIA - CÓPIA NÃO AUTORIZADA
UNINOVE

Rev. B

Engenharia de Avaliações e Perícias
Manutenção Predial e Avaliação de Máquinas
e Equipamentos

16/07/2011
Folha 275/424

Recomendações Técnicas
As recomendações técnicas mais importantes são:
• inspeções visuais freqüentes, com a troca imediata das peças do
equipamento quando desgastadas ou faltando;
• a superfície junto ao equipamento deve ser do tipo absorvente a
impactos;
• contratação de pessoal especializado, para a execução de inspeções.
Você sabia?





Você sabia que as crianças só devem ter acesso aos playgrounds
acompanhadas por um responsável?
Você sabia que os brinquedos devem possuir sinalização indicando a idade
e altura apropriada das crianças que podem utilizá-lo?
Você sabia que um playground sem manutenção pode esconder perigosas
armadilhas às crianças?
Você sabia que tão importante quanto o equipamento, é que o seu entorno
também seja adequado ao uso pelas crianças?

Figura: Equipamentos para Playground

Elaborado por:

Analisado por:

Professor :

Marcelo Gandra Falcone

Alessandra Aparecida Vieira

Marcelo Gandra Falcone

QUANDO IMPRESSO CONSIDERAR PIRATARIA - CÓPIA NÃO AUTORIZADA
UNINOVE

Rev. B

Engenharia de Avaliações e Perícias
Manutenção Predial e Avaliação de Máquinas
e Equipamentos

16/07/2011
Folha 276/424

9.15 Sistema de cobertura

Descrição
È um sistema composto por estrutura (metálica, madeira a concreto), telhas
(barro, fibrocimento, plásticas ou metálicas), calhas, rufos, canaletas, lajes,
coletores e terraços impermeabilizados.
A cobertura pode ser ainda de vidro ou policarbonato, apoiada sobre estrutura
metálica. Normalmente, esses dois tipos de cobertura têm um caráter estético e
decorativo, mantendo, no entanto sua característica principal, que é a proteção
contra intempéries. Podemos ainda encontrar coberturas retrateis, que já não
são comuns de se encontrar e deve ter um tratamento todo especial. A
estrutura de um telhado é composto por tesoura, terça, oitão, ripas e caibros.

Figura: Sistema de Cobertura - Telhado

Elaborado por:

Analisado por:

Professor :

Marcelo Gandra Falcone

Alessandra Aparecida Vieira

Marcelo Gandra Falcone

QUANDO IMPRESSO CONSIDERAR PIRATARIA - CÓPIA NÃO AUTORIZADA
UNINOVE

Rev. B

Engenharia de Avaliações e Perícias
Manutenção Predial e Avaliação de Máquinas
e Equipamentos

16/07/2011
Folha 277/424

Finalidades
• Proteção da parte superior das edificações contras intempéries.
• Recebimento de águas de chuva e direcionamento para o sistema de
captação de águas pluviais.
• Composição arquitetônica da fachada da edificação.
Problemas e anomalias
• Escorrimento de telhas devido à ação dos ventos.
• Afrouxamento de parafuso de fixação.
• Corrosão dos parafusos de fixação.
• Ressecamento das borrachas.
• Quebra de telhas.
• Infiltração por ressecamento do silicone das juntas.
• Destacamento da argamassa de chumbamento das cumeeiras.
• Extravasões devidos a transbordamento dos condutores.
• Destacamento do chumbamento dos rufos.
• Empenamento da estrutura de madeira.
• Caída inadequada para os coletores de água pluvial.
• Inclinação inadequada.
• Fixação inadequada das telhas.
• Má fixação da estrutura do telhado.
• Utilização de materiais inadequados.
• Dificuldade de acesso à cobertura para manutenção.
• Estocar materiais de forma inadequadas nas coberturas.
• Fixação de equipamentos de manutenção
• Oxidação de rufos e calhas.
• Infiltrações provenientes da troca ou instalação de equipamentos
• Apodrecimento (estrutura de madeira) em função de infiltração de água.
• Corrosão (estrutura metálica) em função de infiltração de água.
• Entupimentos causados por folhas e galhos
• Infestação por pragas urbanas (cupins)
Recomendação para solução das anomalias
• Melhoria no sistema de fixação das telhas.(amarrar as primeiras fiadas é uma
alternativa principalmente em áreas sujeitas a ventos fortes)
• Verificação periódica do aperto de parafusos de fixação.
• Nas calhas e rufos a cada três anos, renove a pintura das peças de chapa
galvanizada usando tintas asfaltica.As de alumínio devem ser protegidas com
um fundo especifico, dentro da mesma periodicidade o cobre despensa
tratamento.
• Substituição das borrachas danificadas.
• Substituição das telhas quebradas.
• Substituição do silicone das juntas.
Elaborado por:

Analisado por:

Professor :

Marcelo Gandra Falcone

Alessandra Aparecida Vieira

Marcelo Gandra Falcone

QUANDO IMPRESSO CONSIDERAR PIRATARIA - CÓPIA NÃO AUTORIZADA
UNINOVE

Rev. B

Engenharia de Avaliações e Perícias
Manutenção Predial e Avaliação de Máquinas
e Equipamentos

16/07/2011
Folha 278/424

• Substituição de cumeeira e novo assentamento.
• Limpeza dos condutores.
• Retirada de toda a argamassa solta, e novo assentamento dos rufos com
argamassa.
• Substituição do elemento de madeira danificado
• Tratamento com lixamento e anticorrosivo.
• Correção da caída.
• Adequar a estrutura do telhado à inclinação correta.
• Fixar as telhas de forma adequada com parafusos galvanizados e arruelas de
borracha.
• Melhorar a fixação da estrutura do telhado.
• Na execução da manutenção utilizar sempre materiais adequados, seguindo
as normas de segurança.
• Os componentes de madeira que ficam expostos à chuva e sol precisam
receber aplicações de stain ou verniz O stain é um produto impregnante que
protege de raio solares e fungos, deve ser renovado a cada dois ano se a
edificação ficar no litoral a manutenção terá que ser feita todo o ano.
• No caso da estrutura ser metálica recomenda-se fazer uma inspeção a
cada cinco anos, para ver se há algum ponto de corrosão, principalmente nas
áreas de solda, mais vulneráveis.Em caso afirmativo, deve-se lixar
manualmente a superfície atingida, aplicar uma camada de primer epóxi e
pintar com tinta polioretânica ou epóxi.Se não houver problemas, basta
renovar a pintura original.
• Programar e planejar a execução dos serviços de manutenção.
• Não permitir qualquer tipo de armazenamento sobre a cobertura
• Se houver a instalação de equipamentos, vedar todos os parafusos de
forma adequada.
• O aperto de telhas de fibrocimento deve ser feito de forma cuidadosa para se
evitar a fissuração das telhas nas ondas de fixação.
• Proibir o acesso de pessoas não habilitadas ao telhado.
• Ao menos uma vez por ano, antes da época das chuvas, é preciso desobstruir
calhas e condutores, não há outro jeito: essa limpeza tem que ser feita de
forma manual, com o auxilio de vassoura e pá.Tampe a entrada do condutor e
retire folhas e gravetos amontoados ao longo da calhas.
• Trafego correto de pessoas da manutenção sobre o telhado (sempre andar
sobre tábuas as quais nunca devem ser posicionadas no meio das telhas).
• Nunca trafegar sobre telhas úmidas ou molhadas.

Perguntas e respostas
 Má conservação do telhado pode causar danos à edificação?
R: Sim, infiltrações trarão danos a estrutura do telhado e ao imóvel no nível
inferior.


É preciso inspecionar o telhado após uma chuva de granizo?

Elaborado por:

Analisado por:

Professor :

Marcelo Gandra Falcone

Alessandra Aparecida Vieira

Marcelo Gandra Falcone

QUANDO IMPRESSO CONSIDERAR PIRATARIA - CÓPIA NÃO AUTORIZADA
UNINOVE

Rev. B

Engenharia de Avaliações e Perícias
Manutenção Predial e Avaliação de Máquinas
e Equipamentos

16/07/2011
Folha 279/424

R: Sim, pois poderá ocorrer a quebra de telhas.
 É comum o entupimento das coletoras de água?
R: Sim, principalmente quando há árvores por perto, pássaros e pipas também
são causadores.
Informações úteis


Somente profissional habilitado deverá fazer manutenção em coberturas.



Nunca faça manutenção na cobertura em dias de chuva.



O zelador deverá acompanhar todo e qualquer trabalho que venha a ser
executado na cobertura



A qualidade do telhado depende muito mais de fatores de manutenção e
conservação do que das características dos materiais empregados.



Os pontos descritos acima são de grande importância para a manutenção
da integridade do telhado e por conseqüência, para sua estanqueidade.



A cobertura se for bem elaborada , construída e com manutenções
preventivas e corretivas periódicas poderá durar a vida toda, quer seja de
madeira, quer seja de metal, ou de qualquer outro material apropriado



Sempre que for necessária para a manutenção, a substituição de algum
elemento em uma cobertura de vidro deve-se obrigatoriamente manter a
especificação técnica do material. original.



É recomendável que se tenha um contrato de manutenção para as
coberturas retrateis ( seus elementos mecânicos e elétricos necessitam,
(de tal manutenção).
Nos beirais das coberturas, deverá haver uma proteção sob as telhas, para
se evitar a entrada de pequenos animais( ratos, pássaros ).





Se for necessário a instalação de equipamentos na cobertura, eventuais fios
e cabos que necessitam passar sob o telhado, deverão ser tubulados.
Empresas que venham a instalar equipamentos na cobertura deverão
garantir a condição original do telhado.

Elaborado por:

Analisado por:

Professor :

Marcelo Gandra Falcone

Alessandra Aparecida Vieira

Marcelo Gandra Falcone

QUANDO IMPRESSO CONSIDERAR PIRATARIA - CÓPIA NÃO AUTORIZADA
UNINOVE

Rev. B

Engenharia de Avaliações e Perícias
Manutenção Predial e Avaliação de Máquinas
e Equipamentos

16/07/2011
Folha 280/424

9.16. Acessibilidade e Setorização.

A inspeção deverá ser restrita aos aspectos físicos e de comunicação. O item
acessibilidade deve atender às disposições previstas no Decreto nº 5.296/2004
e à ABNT NBR 9050/2004. Destaca-se que todas as intervenções que
promovam acessibilidade devem garantir a todos o direito de ir e vir, com
AUTONOMIA, CONFORTO e SEGURANÇA, da edificação. As casa de
espetáculo e Shows com cadeiras devem obedecer a setorização conforme
Anexo 17, alínea 17.j.7 do Decreto 32.329/92.
9.16.1) Setorização (Plateia - Auditórios / Casa de Espetáculos):



As Edificações destinadas a locais de reunião, que abriguem salas de
cinemas, teatros e auditórios dotados de assentos fixos dispostos em filas,
deverão atender aos seguintes requisitos de acordo com Anexo 17 da Lei
11.228/92 e Decreto 32.329/92 (Item 17.J.7):
a) máximo de 16 ( dezesseis ) assentos em fila, quando tiverem corredores
em ambos os lados;
b) máximo de 8 ( oito ) assentos em fila, quando tiverem corredor em um
único lado;
c) setorização através de corredores transversais que disporão de, no
máximo 14 ( quatorze ) filas;
d) vão livre entre o assento e o encosto do assento fronteiro de, no
mínimo, 0,50 m ( cinqüenta centímetros );

9.16.2) Acessibilidade




Todo local de reunião deverá ser adequado à utilização por parte de
deficientes físicos.
Adaptação à deficiente físico de acordo com a Lei 11345/93 e NBR
9050/2004.Os cinemas, teatros, auditórios e similares devem possuir, na
área destinada ao público, espaços reservados para P.C.R., assentos para
P.M.R. e assentos para P.O., atendendo às seguintes condições:
a) estar localizados em uma rota acessível vinculada a uma rota de fuga;
b) estar distribuídos pelo recinto, recomendando-se que seja nos diferentes
setores e com as mesmas condições de serviços;
c) estar localizados junto de assento para acompanhante, sendo no mínimo
um assento. É recomendável dois assentos de acompanhante;
d) garantir conforto, segurança, boa visibilidade e acústica;
e) estar instalados em local de piso plano horizontal;
f) ser identificados por sinalização no local e na bilheteria, conforme 5.4.1;

Elaborado por:

Analisado por:

Professor :

Marcelo Gandra Falcone

Alessandra Aparecida Vieira

Marcelo Gandra Falcone

QUANDO IMPRESSO CONSIDERAR PIRATARIA - CÓPIA NÃO AUTORIZADA
UNINOVE

Rev. B

Engenharia de Avaliações e Perícias
Manutenção Predial e Avaliação de Máquinas
e Equipamentos

16/07/2011
Folha 281/424

g) estar preferencialmente instalados ao lado de cadeiras removíveis e
articuladas para permitir ampliação da área de uso por acompanhantes ou
outros usuários (P.C.R. ou P.M.R.)
NOTA Em edifícios existentes, os espaços para P.C.R. e os assentos para
P.M.R. podem ser agrupados, quando for impraticável a sua distribuição por
todo o recinto. Sempre que possível os espaços devem ser projetados de
forma a permitir a acomodação de P.P.D com no mínimo um
acompanhante.


Palco e bastidores: Uma rota acessível deve interligar os espaços para
P.C.R. ao palco e aos bastidores. Quando houver desnível entre o palco e
a platéia, este pode ser vencido através de rampa com as seguintes
características:
a) largura de no mínimo 0,90 m;
b) inclinação máxima de 1:6 (16,66%) para vencer uma altura máxima de
0,60 m;
c) inclinação máxima de 1:10 (10%) para vencer alturas superiores a 0,60
m;
d) ter guia de balizamento, não sendo necessária a instalação de guardacorpo e corrimão.
Obs 1: Esta rampa pode ser substituída por um equipamento
eletromecânico Sempre que possível, rampa ou equipamento
eletromecânico de acesso ao palco devem se situar em local de acesso
imediato, porém discreto e fora do campo visual da platéia.
Obs 2: O desnível entre o palco e a platéia deve ser indicado com
sinalização tátil de alerta no piso,



Camarins: Pelo menos um camarim para cada sexo deve ser acessível.
Quando somente existir um camarim de uso unissex, este deve ser
acessível.



Pelo DECRETO 45.122 – 12/08/2004: Art 2. – Deverão atender às normas
de adequação à acessibilidade das pessoas com deficiência ou com
mobilidade reduzida, as edificações, novas ou existentes, destinadas aos
seguintes usos:
ICinemas, teatros, salas de concerto, casas de espetáculos
e estabelecimentos bancários, com qualquer capacidade de
lotação;
IILocais de reunião, com capacidade para mais de 100
(cem) pessoas, destinados a abrigar eventos geradores de
público, tais como:
a) Auditórios;
b) Templos religiosos;
c) Salões de festas ou danças;
d) Ginásios ou estádios;

Elaborado por:

Analisado por:

Professor :

Marcelo Gandra Falcone

Alessandra Aparecida Vieira

Marcelo Gandra Falcone

QUANDO IMPRESSO CONSIDERAR PIRATARIA - CÓPIA NÃO AUTORIZADA
UNINOVE

Engenharia de Avaliações e Perícias
Manutenção Predial e Avaliação de Máquinas
e Equipamentos

e)
f)
g)
h)
IIIa)
b)
c)
d)


Rev. B
16/07/2011
Folha 282/424

Recintos para exposições ou leilões;
Museus;
Restaurantes, lanchonetes e congêneres;
Clubes esportivos e recreativos.
Qualquer outro uso com capacidade de lotação para mais
de 600 ( seiscentas ) pessoas, tais como:
Estabelecimentos destinados à prestação de serviços de Assistência
à Saúde, educação e hospedagem;
Centros de compras – Shopping Centers;
Galerias comerciais;
Supermercados.

Em sanitários acessíveis isolados é necessário:
a) Dimensões das barras de apoio: Diâmetro: 3,0 a 4,5 cm
b) Disposição de acessórios: de 0,80 a 1,20 m
c) Altura da barra de apoio: 0,75 m
d) Altura do vaso: 0,46 m
e) Obrigatório a instalação de dispositivo de sinalização de emergência
ao lado da bacia e no boxe do chuveiro, a uma altura de 0,40 m do
piso acabado, para acionamento em caso de queda.

 Estacionamento
ESTACIONAMENTO
Privativo até 100 vagas
Privativo mais de 100 vagas
Coletivo até 10 vagas
Coletivo mais de 10 vagas

VAGAS
DEFICIENTES COE
0
1%
0
3%

VAGAS DEF.
Decreto Fed.
2%
2%
2%
2%

Espaços para pessoas em cadeira de rodas e assentos para PMR/PO.
Capacidade total de assentos espaços para P.C.R. assento para P.M.R.:
Capacidade total Espaço para P.C.R.
Assento para
Assento P.O.
de assentos:
P.M.R.
Até 25
1
1
1
26 a 50
2
1
1
51 a 100
3
1
1
101 a 200
4
1
1
201 a 500
2% do total
1%
1%
501 a 1.000
10 espaços mais
1%
1%
1% que exceder
500
Acima de 1.000
15 espaços mais
10 assentos mais 10 assentos mais
0,1% do que
0,1% do que
0,1% do que
exceder 1.000
exceder 1.000
excedem 1.000



Elaborado por:

Analisado por:

Professor :

Marcelo Gandra Falcone

Alessandra Aparecida Vieira

Marcelo Gandra Falcone

QUANDO IMPRESSO CONSIDERAR PIRATARIA - CÓPIA NÃO AUTORIZADA
UNINOVE

Rev. B

Engenharia de Avaliações e Perícias
Manutenção Predial e Avaliação de Máquinas
e Equipamentos

16/07/2011
Folha 283/424

9.17 Sistema de Condições Sanitárias

Toda edificação deverá dispor de instalações sanitárias conforme disposto no
presente Capítulo, na razão de sua população e em função da atividade
desenvolvida.
QUANTIFICAÇÃO
Os índices para a determinação do número de pessoas serão os mesmos
adotados na tabela de Lotação das Edificações no Capítulo 12, devendo ser
descontadas da área bruta da edificação, para este fim, as áreas destinadas à
própria instalação sanitária e garagens de uso exclusivo.
1-As edificações destinadas a uso residencial unifamiliar e multifamiliar
deverão dispor de instalações sanitárias nas seguintes quantidades
mínimas:
a) casas e apartamentos: 1 (uma) bacia, 1 (um lavatório e 1 (um)
chuveiro;
b) áreas de uso comum de edificações multifamiliares: 1(uma) bacia,
1 (um) lavatório, e 1 (um) chuveiro, separados por sexo.
2-As demais edificações deverão dispor de instalações sanitárias, nas
seguintes quantidades mínimas:
a) hospitais ou clínicas com internação, hotéis e similares: 1 (uma)
bacia, 1 (um) lavatório e 1 (um) chuveiro para cada 2 (duas)
unidades de internação ou hospedagem, e 1 (uma) bacia e 1 (um)
lavatório para cada 20 (vinte) pessoas nas demais áreas,
descontadas deste cálculo as áreas destinadas a internação ou
hospedagem;
b) locais de reunião: 1 (uma) bacia e 1 (um) lavatório para cada 50
(cinqüenta) pessoas;
Ver LEI 11345-93
Ver LEI 11441-93
c) outras destinações: 1 (uma) bacia e 1 (um) lavatório para cada 20
(vinte) pessoas.
Ver LEI 11495-94
Ver RESOLUCAO CEUSO 094-99

2.1-Quando o número de pessoas for superior a 20 (vinte) haverá,
necessariamente, instalações sanitárias separadas por sexo.
2.2-A distribuição das instalações sanitárias por sexos será
decorrente da atividade desenvolvida e do tipo de população
predominante.
2.3-Nos sanitários masculinos, 50% (cinqüenta por cento) das bacias
poderão ser substituídas por mictórios.
Elaborado por:

Analisado por:

Professor :

Marcelo Gandra Falcone

Alessandra Aparecida Vieira

Marcelo Gandra Falcone

QUANDO IMPRESSO CONSIDERAR PIRATARIA - CÓPIA NÃO AUTORIZADA
UNINOVE

Rev. B

Engenharia de Avaliações e Perícias
Manutenção Predial e Avaliação de Máquinas
e Equipamentos

16/07/2011
Folha 284/424

2.4-Toda edificação não residencial deverá dispor, no mínimo, de
uma instalação sanitária por sexo, distante no máximo 50m
(cinqüenta metros) de percurso real de qualquer ponto, podendo se
situar em andar contíguo ao considerado.
2.5-Será obrigatória a previsão de, no mínimo, uma bacia e um
lavatório por sexo, junto a todo compartimento destinado a
consumição de alimentos, situados no mesmo pavimento deste.
2.6-Serão providos de antecâmara ou anteparo as instalações
sanitárias que derem acesso direto a compartimentos destinados a
trabalho, refeitório ou consumição de alimentos.
2.7-Quando, em razão da atividade desenvolvida, for prevista a
instalação de chuveiros, estes serão calculados na proporção de um
para cada 20 (vinte) usuários.
2.8-Serão obrigatórias instalações sanitárias para pessoas
portadoras de deficiências físicas, na relação de 3% (três por cento)
da proporção estabelecida no item 14.1.2, nos seguintes usos:
a) locais de reunião com mais de 100 (cem) pessoas;
b) qualquer outro uso com mais de 600 (seiscentas) pessoas.


Locais de Reunião: 1 ( uma ) bacia e 1 ( um ) lavatório para cada 50 (
cinqüenta ) pessoas.
a) Quando o número de pessoas for superior a 20 ( vinte ) haverá
necessariamente, instalações sanitárias separadas por sexo.



Toda edificação não residenciais deverá dispor, no mínimo de uma
instalação sanitária por sexo, distante no máximo 50 m ( cinqüenta )
metros de percurso real de qualquer ponto, podendo se situar em andar
contíguo ao considerado.

Figura: Banheiro adequado
Elaborado por:

Analisado por:

Professor :

Marcelo Gandra Falcone

Alessandra Aparecida Vieira

Marcelo Gandra Falcone

QUANDO IMPRESSO CONSIDERAR PIRATARIA - CÓPIA NÃO AUTORIZADA
UNINOVE

Rev. B

Engenharia de Avaliações e Perícias
Manutenção Predial e Avaliação de Máquinas
e Equipamentos

16/07/2011
Folha 285/424

9.18 Cozinhas Profissionais

Este capitulo foi escrito baseado na norma NBR 14518 - 2000 - Ventilação para
Cozinhas Profissionais, em especial seu item 9 e na IT Instrucao Tecnica - 38 Segurança contra Incêndio em Cozinha Profissional. Sua introdução na
Apostila deve-se ao numero elevado de princípios de incêndios em cozinhas
industriais, principalmente nos sistemas de coifas
9.8.2. Principais anomalias e falhas
As anomalias e falhas mais comuns nas instalações de gás, independente do
tipo de gás fornecido, são:


Falta de sistema de Proteção Contra Incêndios em Cozinhas Profissionais
cuja área de cocção seja maior que 50 m2.

Bom exemplo de sistema automático:

Figura: Bateria de CO2 para extinção de incêndio.

Elaborado por:

Analisado por:

Professor :

Marcelo Gandra Falcone

Alessandra Aparecida Vieira

Marcelo Gandra Falcone

QUANDO IMPRESSO CONSIDERAR PIRATARIA - CÓPIA NÃO AUTORIZADA
UNINOVE

Rev. B

Engenharia de Avaliações e Perícias
Manutenção Predial e Avaliação de Máquinas
e Equipamentos

16/07/2011
Folha 286/424

Mau exemplo de Cozinha:

Figura: Área de cocção com gambiarras elétricas











As saídas devem ser mantidas livres e desimpedidas, de acesso facilitado,
de forma que os ocupantes não tenham dificuldade em abandonar a
edificação em caso de sinistro.
A largura das saídas, corredores, escadas ou das rampas será calculada
tomando como base 0,01 m por pessoa com largura mínima de 1,20 m.
Para cálculo do número de pessoas, a área ocupada deve ser 1 pessoa
para cada 0,40 m2 .
Devem ser previstos acessos e saídas para deficientes físicos, segundo a
NBR 9050/94.
Todos os funcionários, independentemente da área construída, devem
possuir treinamento teórico e prático de técnicas de prevenção e
combate a incêndios, especialmente voltado para os riscos locais.
As tomadas elétricas devem ser instaladas fora do fluxo gasoso
proveniente dos equipamentos de cocção.
A rede de dutos de exaustão em nenhum trecho pode passar em
compartimentos com medidores ou botijões de gás combustível, em
instalações fixas.

A rede de dutos de exaustão deve ser aparente, sendo vedado o uso de
quaisquer tipos de forro, rebaixados ou de acabamento que possam
incrementar e/ou manter a progressão do incêndio.
Elaborado por:

Analisado por:

Professor :

Marcelo Gandra Falcone

Alessandra Aparecida Vieira

Marcelo Gandra Falcone

QUANDO IMPRESSO CONSIDERAR PIRATARIA - CÓPIA NÃO AUTORIZADA
UNINOVE

Rev. B

Engenharia de Avaliações e Perícias
Manutenção Predial e Avaliação de Máquinas
e Equipamentos

16/07/2011
Folha 287/424

9.19 SISTEMAS AUXILIARES

Sistema de iluminação
Utilizando-se o Sistema de Automação Predial, é possível monitorar e operar o
Sistema de Iluminação do edifício, seja nas áreas comuns ou nas áreas
privativas.
Nas áreas privativas ou comuns de um edifício, o Sistema de Automação
Predial permite estabelecer o horário de funcionamento, ou seja, poderíamos
configurar o sistema de modo que a iluminação ligue automaticamente as
áreas privativas às 07h00 e desligue automaticamente às 20h00. Normalmente,
o inquilino de um Edifício com Sistema de Automação Predial é quem decide o
horário de funcionamento. No entanto, caso o usuário (funcionário) necessite
permanecer nos escritórios além do horário mencionado, deverá entrar em
contato com a Central de Automação Predial do Edifício e solicitar que a
iluminação seja ativada novamente, informando o pavimento e a localização
exata.
Muitos edifícios de escritório possuem circuitos de iluminação divididos em
diversos quadrantes de cada pavimento de escritório. Dessa forma é
necessário permanecer com todo o andar iluminado, a menos que muitas
pessoas estejam trabalhando no mesmo andar, em localizações distintas
(dispersos pelo andar). Portanto, a participação de cada usuário também é
muito importante no processo global de economia de recursos: energia elétrica,
água etc.
Para poder exemplificar, confeccionamos novamente um edifício hipotético, em
que cada conjunto de escritório possui oito circuitos de iluminação, dispostos
em oito quadrantes (conjuntos de luminárias agrupadas). Caso os quadrantes
de iluminação sejam desfeitos, futuramente poderá ocorrer a seguinte situação:
o(a) usuário(a) solicita iluminação em uma única sala e será necessário ligar
todos os circuitos de iluminação do pavimento para atender a essa solicitação.

Circuito fechado de televisão (C.F.T.V.)
Os modernos Sistemas de Circuito Fechado de Televisão (C.F.T.V.) são
constituídos por câmeras coloridas, estrategicamente localizadas em todas as
áreas comuns, com gravação 24 horas por dia em sistema de videocassete
especial ou sistema de gravação digital. Por exemplo: as câmaras instaladas
nos lobbies dos andares podem ou não serem acionadas para gravação por
intermédio dos controles de presença de infravermelho ativo, instalados nas
próprias câmaras ou nos próprios lobbies dos elevadores.

Elaborado por:

Analisado por:

Professor :

Marcelo Gandra Falcone

Alessandra Aparecida Vieira

Marcelo Gandra Falcone

QUANDO IMPRESSO CONSIDERAR PIRATARIA - CÓPIA NÃO AUTORIZADA
UNINOVE

Rev. B

Engenharia de Avaliações e Perícias
Manutenção Predial e Avaliação de Máquinas
e Equipamentos

16/07/2011
Folha 288/424

Com este Sistema é possível monitorar todas as áreas comuns externas e
internas do edifício, subsolos, escadas rolantes, casas de máquinas, ar
condicionado, elevadores, áreas de serviço, heliponto, recepção, trânsito
externo ao edifício, segurança externa etc.

Sistemas de incêndio: detecção, combate e sonorização
Os edifícios modernos possuem sistema de detecção e combate de incêndio
monitorados e operados pelo Sistema de Supervisão Predial. Assim, todos os
pavimentos do prédio possuem dispositivos de detecção de fumaça, podendo
ser endereçáveis; ou seja, o Sistema de Alarme de Incêndio, por intermédio da
integração com o Sistema de Automação Predial, pode demonstrar
graficamente na tela do sistema a localização exata do sensor que entrou em
alarme. Os demais tipos de sensores também possuem essa tecnologia.
Detectores de gás e detectores termovelocimétricos são normalmente
instalados em copas ou cozinhas; botoeiras de emergência, sirenes (sonoro e
visual), assim como toda a rede de sprinklers pressurizada também pode ser
monitorada pelo Sistema de Automação Predial.
Dessa forma, desempenhar qualquer tipo de intervenção de emergência para
combater princípios de incêndio é fácil, pois os alarmes podem ser
prematuramente identificados.
Em complemento, muitos edifícios possuem Sistema Sonoro nos pavimentos
de escritório, de forma que em caso de incêndio é possível transmitir
mensagens previamente gravadas de modo que o operador do sistema não
tenha que se ocupar dessa função.
Existem outros recursos que também estão disponíveis na tecnologia atual: o
Sistema de Incêndio pode ser monitorado remotamente; nesse caso, o Corpo
de Bombeiros também poderia ser acionado de forma automática. Outra função
que o Sistema de Incêndio oferece é a interface com os Elevadores. Em caso
de incêndio, o Sistema de Incêndio instrui os elevadores a interromperem o
tráfego total e simultaneamente; após, elevador por elevador desce até o
pavimento térreo e abre as portas, liberando os passageiros em segurança.
Essa função é pré-determinada pelo Corpo de Bombeiros e chama-se “serviço
de incêndio” ou “serviço de emergência” para os elevadores. Porém, quem
origina o sinal é o Sistema de Incêndio do Edifício, cuja interface com o
Sistema de Automação Predial encaminha o referido sinal para o Sistema de
Gerenciamento dos Elevadores. Esse é, sem dúvida, um caso clássico da
integração que deve existir entre a automação dos subsistemas de um edifício,
a qual reitera a necessidade de existir um protocolo único de comunicação
(LonWorks) entre os diversos fabricantes.

Elaborado por:

Analisado por:

Professor :

Marcelo Gandra Falcone

Alessandra Aparecida Vieira

Marcelo Gandra Falcone

QUANDO IMPRESSO CONSIDERAR PIRATARIA - CÓPIA NÃO AUTORIZADA
UNINOVE

Rev. B

Engenharia de Avaliações e Perícias
Manutenção Predial e Avaliação de Máquinas
e Equipamentos

16/07/2011
Folha 289/424

Controle de acesso e segurança
O Sistema de Automação Predial também permite efetuar o Controla de
Acesso ao Edifício por meio de diversos tipos de dispositivos, como por
exemplo: portões, cancelas e catracas eletrônicas. Esses dispositivos podem
ser operados localmente ou pelo Sistema de Supervisão Predial. Quanto às
catracas eletrônicas, permitem o acesso de usuários somente com a utilização
de crachás de aproximação. Esses mesmos crachás podem operar as
cancelas de acesso ao estacionamento.
Este é, sem dúvida, um bom exemplo para mostrar o que é um sistema de
automação com protocolo fechado (sistema proprietário) ou sistema de
automação com protocolo aberto (protocolo LonWorks).
Imaginem a seguinte situação: no referido edifício hipotético foi instalado um
sistema de automação predial, inadvertidamente, com protocolo fechado. Em
outras palavras, qualquer complemento de leitora, controladora, crachá de
acesso, software ou peça de reposição, obrigatoriamente deverá ser adquirido
no mesmo fabricante do Sistema de Automação Predial. Imaginem a seguinte
situação, muito comum: ao ser contratada a empresa para operar o
estacionamento do edifício, descobriu-se que o sistema de controle de acesso
do estacionamento é diferente do sistema de controle de acesso do edifício.
Ainda assim, pensou-se na possibilidade de integrar os dois sistemas: porém, o
custo de integração dos dois sistemas é muito alto, ou ainda, para expandir o
sistema de acesso do edifício para o estacionamento, o custo é muito maior do
que o sistema proposto pela empresa de estacionamento. Dessa forma, adotase que o sistema de controle de acesso do estacionamento será diferente do
edifício até mesmo porque o Síndico do edifício não quer assumir essa
responsabilidade sobre o estacionamento. O resultado prático é que todos os
usuários do edifício terão que utilizar dois crachás para acessar o edifício: um
para o estacionamento e outro para as catracas. A partir desse ponto, diversos
problemas operacionais ocorrem, como por exemplo, a necessidade de
atualizar duas bases de dados de cadastro de usuários simultaneamente etc.
Bastaria que o projetista tivesse especificado o sistema de automação predial e
controle de acesso com protocolo aberto. Esse exemplo também poderia ser
utilizado para fazer uma analogia aos demais subsistemas prediais e a
necessidade de integrá-los. Já imaginaram as dificuldades para integrar a
Automação Predial com o Sistema de Gerenciamento de Elevadores? Ou
integrar o Sistema de Automação Predial de Gerenciamento de Energia
Elétrica? O exemplo do estacionamento é bastante simples; no entanto, em um
dos mais modernos edifícios comerciais de São Paulo, os usuários utilizam
dois crachás. Qual terá sido o motivo? Custo? Problemas de integração dos
sistemas? Certamente, caso tivessem tido o cuidado quanto à questão do
protocolo aberto, o edifício teria somente um crachá. Resumindo: protocolo
fechado torna cativo o Cliente ao Fabricante. Por sua vez, o Fabricante
costuma cobrar mais caro pelo protocolo fechado.
Elaborado por:

Analisado por:

Professor :

Marcelo Gandra Falcone

Alessandra Aparecida Vieira

Marcelo Gandra Falcone

QUANDO IMPRESSO CONSIDERAR PIRATARIA - CÓPIA NÃO AUTORIZADA
UNINOVE

Rev. B

Engenharia de Avaliações e Perícias
Manutenção Predial e Avaliação de Máquinas
e Equipamentos

16/07/2011
Folha 290/424

Outros sistemas também são muito utilizados no mercado de segurança
patrimonial. Utiliza-se para proteção perimetral da propriedade, infravermelho
ativo e outras tecnologias. Recomenda-se que seja envolvido um Consultor,
sem vínculo com fornecimento de mão-de-obra ou fabricante de dispositivos de
proteção, para determinar com exatidão quais equipamentos devem ser
utilizados. Outro edifício em São Paulo empregou o sistema de proteção
perimetral com infravermelho ativo, o qual dispara com cada gato ou pedestre
que senta no muro com 0,5 m de altura. Pode acontecer que você tenha mais
alarmes do que efetivamente necessita.
Sistemas gerenciadores de Energia elétrica
O Sistema de Automação Predial também possui a capacidade de integrar
diversos dispositivos de gerenciamento, controle e monitoração do consumo de
energia elétrica.
As variáveis normalmente monitoradas são:
1. Demanda de Energia Elétrica;
2. Consumo de Energia Elétrica;
3. Fator de Potência etc.
O controle de demanda de energia elétrica nada mais é do que o controle do
desligamento das cargas majoritárias do edifício objetivando impedir a
ultrapassagem da demanda contratada. O Sistema de Automação Predial lida
com os valores máximos determinados no Contrato firmado com a
Concessionária, incluindo ou não a margem de segurança normalmente
oferecida de 10% e procede ao desligamento das cargas de modo que a
demanda registrada nunca ultrapasse a demanda contratada.

Figura: Central de Alarme
Elaborado por:

Analisado por:

Professor :

Marcelo Gandra Falcone

Alessandra Aparecida Vieira

Marcelo Gandra Falcone

QUANDO IMPRESSO CONSIDERAR PIRATARIA - CÓPIA NÃO AUTORIZADA
UNINOVE

Rev. B

Engenharia de Avaliações e Perícias
Manutenção Predial e Avaliação de Máquinas
e Equipamentos

16/07/2011
Folha 291/424

10 - Acessibilidade
“Acessibilidade é a Possibilidade e condição de alcance, percepção e
entendimento para a utilização com segurança e autonomia,
de edificações, espaços, mobiliários, vias públicas,
equipamentos urbanos e transporte coletivo.”
(ABNT NBR 9050:2004)
Com base no Decreto Federal 3298, de 1999 é considerada pessoa portadora
de deficiência física, toda aquela que possui alteração completa ou parcial de
um ou mais segmentos do seu corpo, que possa comprometer sua função
física.
De acordo com a Secretaria Municipal da Pessoa com Deficiência e Mobilidade
Reduzida, pessoas com Deficiência ou Mobilidade Reduzida podem ter
limitações:
 DEAMBULAM: Gestantes, obesos, crianças, idosos, usuários de prótese e
órtese, pessoas carregando pacotes, etc.
 USUÁRIOS DE CADEIRA DE RODAS: Paraplégicos, tetraplégicos,
hemiplégicos, amputados, idosos, etc.
 SENSORIAIS: Limitação da capacidade visual, auditiva e fala.
 COGNIÇÃO: Percepção, memória, raciocínio, linguagem, etc
A disfunção pode se apresentar sob a forma de paraplegia, paraparesia,
monoplegia, monoparesia, tetraplegia, tetraparesia, triplegia, triparesia,
hemiplegia, hemiparesia, amputação ou ausência de membro, paralisia
cerebral, membros com deformidade congênita ou adquirida, As doenças
terminadas em plegia significam que a pessoa perdeu o movimento do
membro; em paresia que dizer que ela perdeu a sensibilidade no membro
atingido; e em hemiplegia é quando um lado do corpo fica debilitado, podendo
ser o direito ou esquerdo.
O último Censo do IBGE aponta que 14,5% da população brasileira apresenta
algum tipo de deficiência. No Município de São Paulo, com uma população de
cerca de 10 milhões de habitantes, foram encontrados 10,32 % de pessoas
com deficiência, sendo 1,26% com deficiência mental, 2,37% com deficiência
auditiva, 3,27% com deficiência motora, 0,72% com deficiência física e 6,59%
com deficiência visual.
Com base em dados do Sinduscon os valores de investimento para adaptações
de edificação a Norma NBR 9050 são:
 1% do valor total do investimento, no Projeto ou
 25% do valor total do investimento, no Retrofit, ou seja, na
adequação de obra já existente (em média).

Elaborado por:

Analisado por:

Professor :

Marcelo Gandra Falcone

Alessandra Aparecida Vieira

Marcelo Gandra Falcone

QUANDO IMPRESSO CONSIDERAR PIRATARIA - CÓPIA NÃO AUTORIZADA
UNINOVE

Rev. B

Engenharia de Avaliações e Perícias
Manutenção Predial e Avaliação de Máquinas
e Equipamentos

16/07/2011
Folha 292/424

A seguir veremos o quadro elaborado pela Secretaria Municipal da Pessoa com
Deficiência e Mobilidade Reduzida em 2004 a partir do Censo de 2000:
População com deficiência por Subprefeitura (COGest - set/2004)
Subprefeitura

Pop.
pesquisada

% Def.
Física

% Def.
Motora

% Def.
Mental

% Def.
Auditiva

% Def.
Visual

Aricanduva
Butantã
Cidade Ademar

314.946
589.257
367.664

0,73
0,74
0,84

3,34
3,41
3,19

1,36
1,33
1,37

2,32
2,57
2,85

6,54
7,36
6,07

Campo Limpo
Cidade Tiradentes
Casa Verde

526.171
190.675
313.324

0,76
0,59
0,65

3,24
3,17
3,12

1,21
1,06
1,27

2,42
2,35
2,36

7,29
7,60
7,30

Capela do Socorro 689.474
Ermelino Matarazzo 198.037

0,69
0,67

2,76
2,87

1,21
1,27

2,48
2,84

6,70
6,18

Freguesia do Ó /
Brasilândia

392.247

0,67

2,92

1,31

2,22

5,48

Guaianases
Ipiranga
Itaim Paulista

205.629
275.051
131.442

0,68
0,64
0,49

3,83
3,56
3,55

1,50
1,23
1,16

2,12
2,03
2,37

8,34
6,86
6,24

Itaquera
Jabaquara
Lapa

696.159
201.511
385.047

0,69
0,75
0,81

2,97
3,53
3,89

1,15
1,28
1,49

2,25
2,49
2,71

7,19
7,16
6,52

M'Boi Mirim
Mooca

229.565
348.696

0,78
0,75

3,28
3,98

1,04
1,41

2,70
2,24

5,64
7,77

Parelheiros

23.227

1,26

3,81

1,30

2,26

5,03

Penha
Perus
Pinheiros

453.196
101.425
444.219

0,72
0,48
0,78

3,78
3,71
3,16

1,29
1,27
1,21

2,28
2,24
2,74

6,78
6,58
6,33

Pirituba

295.435

0,75

3,16

1,29

2,32

6,21

Santo Amaro
São Mateus

297.350
314.441

0,77
0,65

3,72
2,88

1,34
1,23

2,47
2,06

6,62
5,33

São Miguel
Santana
Sé

641.893
310.130
550.701

0,74
0,82
0,65

2,80
3,71
3,35

1,19
1,34
1,17

2,74
2,04
2,62

6,05
7,72
5,60

Tremembé / Jaçanã
Vila Prudente /
Sapopemba
Vila Guilherme / Vila
Maria
Vila Mariana

287.744

0,59

2,57

1,15

2,43

4,82

200.320

0,81

3,29

1,31

1,93

6,76

217.625

0,58

3,49

1,21

2,61

8,10

242.939

0,74

3,46

1,21

2,43

5,29

Total

10.435.540

0,71

3,64

1,26

2,37

6,59

Tabela 2 : Dstribuição da População com necessidades especiais. Fonte: Secretaria Municipal da Pessoa com
Deficiência e Mobilidade Reduzida
URL:HTTP://PORTAL.PREFEITURA.SP.GOV.BR/SECRETARIAS/DEFICIENCIA_MOBILIDADE_REDUZIDA/ACESSIBILIDADE
/0004
Elaborado por:

Analisado por:

Professor :

Marcelo Gandra Falcone

Alessandra Aparecida Vieira

Marcelo Gandra Falcone

QUANDO IMPRESSO CONSIDERAR PIRATARIA - CÓPIA NÃO AUTORIZADA
UNINOVE

Rev. B

Engenharia de Avaliações e Perícias
Manutenção Predial e Avaliação de Máquinas
e Equipamentos

16/07/2011
Folha 293/424

10.1 Aplicação da Acessibilidade na Cidade de São Paulo

De acordo com a Secretaria Municipal da Pessoa com Deficiência e Mobilidade
Reduzida e o CPMD - Conselho Municipal da Pessoa com Deficiência ( antigo
CPA), todos os espaços caracterizados pela concentração de pessoas devem
estar adaptados ao uso por cidadãos com deficiência ou mobilidade reduzida.
O nível da adaptação depende da capacidade de lotação e do tipo de uso
desses locais. A seguir as exigências feitas a cada estabelecimento definidas
nas Leis e Normas conforme o APENDICE I deste Trabalho, ou seja, observe
com atenção, pois as exigências são asseguradas por lei.

Fonte: Apostila - ACESSIBILIDADE Mobilidade Acessível na Cidade de São Paulo

10.1.1. Nos locais Classificados conforme tabela acima retirada do Decreto
Municipal de São Paulo 45.122/04 e nos próximos itens de 7.2 até 7.4 os itens
de acessibilidade obrigatórios são:

Fonte: Apostila - ACESSIBILIDADE Mobilidade Acessível na Cidade de São Paulo, pg 66

Elaborado por:

Analisado por:

Professor :

Marcelo Gandra Falcone

Alessandra Aparecida Vieira

Marcelo Gandra Falcone

QUANDO IMPRESSO CONSIDERAR PIRATARIA - CÓPIA NÃO AUTORIZADA
UNINOVE

Rev. B

Engenharia de Avaliações e Perícias
Manutenção Predial e Avaliação de Máquinas
e Equipamentos

16/07/2011
Folha 294/424

10.2.2 Nível da Adaptação para Locais acima de 100 pessoas :

Fonte: Apostila - ACESSIBILIDADE Mobilidade Acessível na Cidade de São Paulo, pg 67

10.1.3 Nível da Adaptação para Locais acima de 600 pessoas :

Fonte: Apostila - ACESSIBILIDADE Mobilidade Acessível na Cidade de São Paulo, pg 68

Elaborado por:

Analisado por:

Professor :

Marcelo Gandra Falcone

Alessandra Aparecida Vieira

Marcelo Gandra Falcone

QUANDO IMPRESSO CONSIDERAR PIRATARIA - CÓPIA NÃO AUTORIZADA
UNINOVE

Rev. B

Engenharia de Avaliações e Perícias
Manutenção Predial e Avaliação de Máquinas
e Equipamentos

16/07/2011
Folha 295/424

10.1.4 Nível da Adaptação para Ocupação Residencial:

Fonte: Apostila - ACESSIBILIDADE Mobilidade Acessível na Cidade de São Paulo, pg 69

10. 2. Desenho Universal

10.2.1 Conceito
O conceito de Desenho Universal (do inglês universal design) foi desenvolvido
em Washington (E.U.A.) em 1963. Ele considera não só o projeto, mas
principalmente a diversidade humana, de forma a respeitar as diferenças
existentes entre as pessoas a garantir a acessibilidade a todos os
componentes do ambiente. Desta forma, os espaços e produtos poderão ser
utilizados pelo mais amplo espectro de usuários, incluindo crianças, idosos,
pessoas muito altas ou baixas, pessoas destras e canhotas, pessoas com
deficiência física ou mental, ou mobilidade reduzida, como gestantes e obesos,
entre outros.

Fonte: Artigo do “The Center forUniversal Design”
Elaborado por:

Analisado por:

Professor :

Marcelo Gandra Falcone

Alessandra Aparecida Vieira

Marcelo Gandra Falcone

QUANDO IMPRESSO CONSIDERAR PIRATARIA - CÓPIA NÃO AUTORIZADA
UNINOVE

Rev. B

Engenharia de Avaliações e Perícias
Manutenção Predial e Avaliação de Máquinas
e Equipamentos

16/07/2011
Folha 296/424

Baseia-se no respeito à diversidade humana e na inclusão de todas as pessoas
nas mais diversas atividades, independente de suas características físicas,
idades ou habilidades. A meta é atingir um desenho de qualidade no qual, além
de requisitos estéticos, é fundamental o fácil entendimento sobre o uso
(legibilidade), a segurança e o conforto para todos.
Embora muitas vezes um projeto não consegue ser a solução ideal a todas as
pessoas, com a mesma equivalência, mas há muitas decisões a serem
tomadas em fase de projeto que podem acomodar os espaços e produtos
utilizáveis de forma segura e autônoma por todos.
A ergonomia, especialmente em fase de concepção, deve ajudar a transformar
positivamente as condições ambientais, que refletem na qualidade de vida de
todas as pessoas. Portanto, os conhecimentos específicos do desenho
universal são fundamentais, partindo do princípio que este “novo” conceito é,
antes de tudo, uma forma de pensar.

10.2.2 Considerações de projeto e conceitos
Primeiramente, é necessário desmitificar o “homem padrão” como referência de
projeto para considerar as necessidades distintas em função da mobilidade,
habilidade e funções sensoriais de cada um, além de seu nível de
compreensão, aprendizado e orientação.
Conforme dados da ONU, entre 10% e 15% de pessoas possuem algum tipo
de deficiência, que varia conforme seu grau de desenvolvimento. O Censo
2000 revelou que 14,5% da população brasileira era portadora de, pelo menos,
uma das deficiências investigadas pela pesquisa. A maior proporção se
encontrava no Nordeste (16,8%) e a menor, no Sudeste (13,1%). Estima-se
que em 2025 o Brasil será o sexto país do mundo a ter a população com mais
idosos, em números absolutos, com aproximadamente 32 milhões.
Deve-se considerar também que no nosso país grande parte da população que
adquire imóvel próprio para moradia, o faz através de financiamentos longos,
que os mantém na mesma edificação por muitos anos.
Para a ergonomia, as deficiências são classificadas conforme o ambiente e os
equipamentos relacionados às necessidades especiais dos usuários. Sob este
enfoque, uma pessoa pode ter uma deficiência e não ser classificado como
deficiente. Por exemplo: um indivíduo que possua uma falange, e não encontra
dificuldade para realizar atividades no seu trabalho.
A restrição indica o grau de dificuldade que cada indivíduo possui para realizar
alguma atividade, conforme a Organização Mundial da Saúde (International
Elaborado por:

Analisado por:

Professor :

Marcelo Gandra Falcone

Alessandra Aparecida Vieira

Marcelo Gandra Falcone

QUANDO IMPRESSO CONSIDERAR PIRATARIA - CÓPIA NÃO AUTORIZADA
UNINOVE

Rev. B

Engenharia de Avaliações e Perícias
Manutenção Predial e Avaliação de Máquinas
e Equipamentos

16/07/2011
Folha 297/424

Classification of Functioning, Disability and Health), de 2001. Qualquer
indivíduo pode ter restrições no desempenho de uma atividade em função de
deficiência, idade avançada, condições sócio-culturais ou desenho do
ambiente. Elas são divididas em:






Restrição sensorial: refere-se às dificuldades na percepção das informações
do meio ambiente devido a limitações nos cetins sensoriais (auditivo, visual,
paladar/olfato, háptico e orientação);
Restrições cognitivas: refere-se às dificuldades no tratamento das
informações recebidas (atividades mentais) ou na sua comunicação através
de produção lingüística devido a limitações no sistema cognitivo;
Restrições físico-motoras: refere-se ao impedimento, ou às dificuldades
encontradas em relação ao desenvolvimento de atividades que dependam
de força física, coordenação motora, precisão ou mobilidade;

Restrição físico-motora
Fonte: Artigo do “The Center forUniversal Design”



Restrições múltiplas: decorrem da associação de mais de um tipo de
restrição de natureza diversa.

Outros conceitos importantes são de autonomia, independência e capacidade
funcional:
 Autonomia á a capacidade de decisão, de comando, de realizar a própria
vontade;
 Independência é a capacidade de realizar algo com os seus próprios meios.
A autonomia é mais útil que a independência como um objetivo global, pois
pode ser completa, mesmo que o indivíduo seja dependente em algum nível.

Elaborado por:

Analisado por:

Professor :

Marcelo Gandra Falcone

Alessandra Aparecida Vieira

Marcelo Gandra Falcone

QUANDO IMPRESSO CONSIDERAR PIRATARIA - CÓPIA NÃO AUTORIZADA
UNINOVE

Rev. B

Engenharia de Avaliações e Perícias
Manutenção Predial e Avaliação de Máquinas
e Equipamentos

16/07/2011
Folha 298/424

Fonte: Artigo do “The Center forUniversal Design”

Capacidade funcional é resultante entre saúde física, saúde mental,
independência na vida diária, integração social, suporte familiar e
independência econômica.
O bem estar é o resultado do equilíbrio entre as várias dimensões da
capacidade funcional, sem necessariamente significar ausência de problemas
em todas as dimensões.


10.2.3 Princípios do Desenho Universal
10.2.3.1. Uso Eqüitativo - O desenho é utilizável por pessoas com habilidades
diversas.

Acesso de supermercado
fonte: NC State University

Transporte Público
Fonte: Artigo do “The Center forUniversal Design”

Elaborado por:

Analisado por:

Professor :

Marcelo Gandra Falcone

Alessandra Aparecida Vieira

Marcelo Gandra Falcone

QUANDO IMPRESSO CONSIDERAR PIRATARIA - CÓPIA NÃO AUTORIZADA
UNINOVE

Rev. B

Engenharia de Avaliações e Perícias
Manutenção Predial e Avaliação de Máquinas
e Equipamentos

16/07/2011
Folha 299/424

a) Prover os mesmos significados de uso para todos os usuários: idêntico
quando possível, equivalente quando não possível. Exemplo: Portas
com sensores se abrem sem exigir força física ou alcance das mãos de
usuários de alturas variadas (as mãos podem estar ocupadas).
b) Impedir segregação ou estigmatização dos usuários. Exemplo: Rampa
adjacente a uma escada impede a segregação de pessoas com
restrições de mobilidade.
c) Prover privacidade, segurança e proteção de forma igual a todos os
usuários. Exemplo: Barras de apoio no sanitário permitem que a pessoa
faça a transferência da cadeira de rodas para o vaso sanitário de forma
segura.
d) Tornar o desenho atraente para todos os usuários. Exemplo: Cores que
estimulam os sentidos fazem com que o ambiente se torne mais
agradável.
10.2.3.2. Uso flexível - O desenho acomoda uma ampla faixa de preferências e
habilidades.

fonte: NC State University

a) Prover escolhas na forma de utilização. Exemplo: Computador com
teclado e mouse possibilita escolha na entrada dos dados.
b) Acomodar acesso e utilização para destros e canhotos. Exemplo:
Guarda-corpos e guias em ambos os lados de um caminho provêem
proteção e estabilidade em ambas as direções para canhotos e destros.
c) Facilitar a precisão e acuidade do usuário. Exemplo: A marcação
arquitetônica da entrada de um prédio facilita ao visitante seu
reconhecimento já do estacionamento.
d) Prover adaptabilidade para a velocidade (compasso, ritmo) do usuário.
Exemplo: Escadas rolantes devem dispor de um patamar no início e
término da escada, para que haja um tempo de adaptação à mudança
de velocidade no deslocamento do usuário.

Elaborado por:

Analisado por:

Professor :

Marcelo Gandra Falcone

Alessandra Aparecida Vieira

Marcelo Gandra Falcone

QUANDO IMPRESSO CONSIDERAR PIRATARIA - CÓPIA NÃO AUTORIZADA
UNINOVE

Rev. B

Engenharia de Avaliações e Perícias
Manutenção Predial e Avaliação de Máquinas
e Equipamentos

16/07/2011
Folha 300/424

Fonte: Artigo do “The Center forUniversal Design”

10.2.3.3. Uso simples e intuitivo - O desenho é fácil de ser compreensão e
independe da experiência, conhecimento, habilidades de linguagem, ou nível
de concentração do usuário.

fonte: NC State University

Fonte: Artigo do “The Center forUniversal Design”

a) Eliminar a complexidade desnecessária. Exemplo: Utilizar simbologia
internacional e de fácil identificação para garantir informação, como a
localização de sanitários.
Elaborado por:

Analisado por:

Professor :

Marcelo Gandra Falcone

Alessandra Aparecida Vieira

Marcelo Gandra Falcone

QUANDO IMPRESSO CONSIDERAR PIRATARIA - CÓPIA NÃO AUTORIZADA
UNINOVE

Rev. B

Engenharia de Avaliações e Perícias
Manutenção Predial e Avaliação de Máquinas
e Equipamentos

16/07/2011
Folha 301/424

b) Ser coerente com as expectativas e intenções do usuário. Exemplo:
Localizar os mapas e placas informativas próximas às circulações
verticais, para o usuário Ter acesso à informação ao chegar no
pavimento.
c) Acomodar uma faixa larga de habilidades de linguagem e capacidades
em ler e escrever. Exemplo: Informações adaptadas aos deficientes
visuais, como mapas táteis, orientam a todos.
d) Organizar as informações de forma compatível com sua importância.
Exemplo: Hierarquizar as informações, através da utilização de placas
maiores e menores, priorizando a informação essencial.
e) Providenciar respostas efetivas e sem demora durante e após o término
de uma tarefa. Exemplo: O elevador deve emitir sinal sonoro e luminoso
ao abrir e fechar, permitindo seu uso com segurança as pessoas com
restrições sensoriais.
10.2.3.4. Informação de fácil percepção - O desenho comunica a informação
necessária para o usuário, independente de suas habilidades ou das condições
do ambiente.

fonte: NC State University

a) Usar diferentes maneiras (pictórico, verbal, táctil) para apresentação
redundante de uma informação essencial. Exemplo: Mapas em alto
relevo permitem que as pessoas com restrições visuais identifiquem o
ambiente em que se encontram.
b) Maximizar a legibilidade da informação essencial. Exemplo: Toda
informação deve chamar a atenção do usuário, através do contraste
entre fundo e figura e com o entorno.
c) Diferenciar elementos de forma a poderem ser descritos (isto é, tornar
mais fácil dar informações ou direções). Exemplo: Grandes edifícios
devem criar referenciais, como a presença de água, que além de
estimular os sentidos facilita a orientação das pessoas com restrições
sensoriais e cognitivas.
d) Prever compatibilidade com uma variedade de técnicas ou
procedimentos usados por pessoas com limitações sensoriais. Exemplo:
Através da utilização do piso guia, a pessoa com restrição visual
direciona-se ao longo de um percurso.
Elaborado por:

Analisado por:

Professor :

Marcelo Gandra Falcone

Alessandra Aparecida Vieira

Marcelo Gandra Falcone

QUANDO IMPRESSO CONSIDERAR PIRATARIA - CÓPIA NÃO AUTORIZADA
UNINOVE

Rev. B

Engenharia de Avaliações e Perícias
Manutenção Predial e Avaliação de Máquinas
e Equipamentos

16/07/2011
Folha 302/424

10.2.3.5. Tolerância ao Erro - O desenho minimiza riscos e conseqüências
adversas de ações acidentais ou não intencionais.

fonte: NC State University

a) Organizar os elementos para minimizar riscos e erros: os elementos
mais usados mais acessíveis; elementos de riscos ou perigosos
eliminados, isolados ou protegidos. Exemplo: Elevadores com acesso ao
público devem estar em locais de destaque; elevadores de serviço
devem estar mais reservados.
b) Providenciar avisos de riscos e de erro. Exemplo: Garantir que o tráfego
de ciclistas seja seguro, dispondo de sinaleiras específicas em ciclovias
que cruzam vias de trânsito intenso de veículos.
c) Providenciar características de segurança na falha humana. Exemplo:
Elevadores com sensores impedem seu fechamento durante a
passagem de uma pessoa.
d) Desencorajar ações inconscientes em tarefas que exijam vigilância.
Exemplo: Sinaleiras sonoras e luminosas nos passeios providenciam
avisos aos pedestres sobre a constante entrada e saída de veículos das
garagens.
5.3.6. Baixo Esforço Físico - O desenho pode ser usado eficientemente,
confortavelmente e com o mínimo de fadiga.

fonte: NC State University

Elaborado por:

Analisado por:

Professor :

Marcelo Gandra Falcone

Alessandra Aparecida Vieira

Marcelo Gandra Falcone

QUANDO IMPRESSO CONSIDERAR PIRATARIA - CÓPIA NÃO AUTORIZADA
UNINOVE

Rev. B

Engenharia de Avaliações e Perícias
Manutenção Predial e Avaliação de Máquinas
e Equipamentos

16/07/2011
Folha 303/424

a) Permitir ao usuário manter uma posição corporal neutra. Exemplo:
Disponibilizar balcões em duas alturas permitindo a aproximação de
pessoas em cadeiras de rodas e crianças.
b) Usar forças moderadas na operação. Exemplo: Torneiras acionadas por
pressão não requerem grande esforço físico.
c) Minimizar ações repetitivas. Exemplo: A maçaneta de porta do tipo
alavanca evita o movimento repetitivo de girar a mão.
d) Minimizar a sustentação de um esforço físico. Exemplo: Rampas
rolantes permitem o deslocamento do usuário sem esforço.
10.2.3.7. Dimensão e espaço para aproximação e uso – Prover dimensão e
espaço apropriados para o acesso, o alcance, a manipulação e o uso
independente do tamanho do corpo, da postura ou mobilidade do usuário.

fonte: NC State University

a) Colocar os elementos importantes no campo visual de qualquer usuário,
sentado ou em pé. Exemplo: Uma abertura de vidro lateral na porta
assegura a visibilidade para pessoas de qualquer estatura.
b) Fazer com que o alcance de todos os componentes seja confortável
para qualquer usuário, sentado ou em pé. Exemplo: Barras de apoio
dispostas horizontal e diagonalmente facilitam o uso do sanitário por
pessoas de habilidades variadas.
c) Acomodar variações da dimensão da mão ou da empunhadura.
Exemplo: Portas com maçanetas em alça acomodam empunhaduras
variadas.
d) Prover espaço adequado para o uso de dispositivos assistivos ou
assistência pessoal. Exemplo: Dispositivos de segurança utilizados em
metrôs, livrarias, etc, devem comportar a passagem de uma cadeira de
rodas.
Os princípios do desenho universal não são prescritivos, mas sim baseados em
características de desempenho dos ambientes e produtos, permitindo liberdade
total de criação.
Cada princípio suporta os demais e todos têm a mesma importância, portanto
devem ser aplicados de maneira integrada.
Elaborado por:

Analisado por:

Professor :

Marcelo Gandra Falcone

Alessandra Aparecida Vieira

Marcelo Gandra Falcone

QUANDO IMPRESSO CONSIDERAR PIRATARIA - CÓPIA NÃO AUTORIZADA
UNINOVE

Rev. B

Engenharia de Avaliações e Perícias
Manutenção Predial e Avaliação de Máquinas
e Equipamentos

16/07/2011
Folha 304/424

10.3 . Locais de Reunião – Item 8.2 da NBR 9050/04

O objetivo deste capítulo 7 é fazer um estudo de caso, com a aplicação da
NBR 9050/04 em locais de reunião, por estes possuírem diversas
características específicas que englobam a aplicação de vários itens que
influem diretamente na concepção dos espaços.
Os cinemas, teatros, auditórios e similares devem possuir, na área destinada
ao público, espaços reservados para P.C.R., assentos para P.M.R. e assentos
para P.O., atendendo às seguintes condições:


estar localizados em uma rota acessível vinculada a uma rota de fuga;



estar distribuídos pelo recinto, recomendando-se que seja nos diferentes
setores e com as mesmas condições de serviços;



estar localizados junto de assento para acompanhante, sendo no mínimo
um assento e recomendável dois assentos de acompanhante;



garantir conforto, segurança, boa visibilidade e acústica;



estar instalados em local de piso plano horizontal;



ser identificados por sinalização no local e na bilheteria;



estar preferencialmente instalados ao lado de cadeiras removíveis e
articuladas para permitir ampliação da área de uso por acompanhantes ou
outros usuários (P.C.R. ou P.M.R.)

No processo de desenvolvimento de um projeto de local de reunião, como
cinemas e teatros, por exemplo, devemos observar alguns aspectos que
norteiam sua elaboração, dentre eles:





ACESSOS E CIRCULAÇÃO;
SANITÁRIOS;
MOBILIÁRIO;
COMUNICAÇÃO E SINALIZAÇÃO (Não será abordada neste trabalho);

Elaborado por:

Analisado por:

Professor :

Marcelo Gandra Falcone

Alessandra Aparecida Vieira

Marcelo Gandra Falcone

QUANDO IMPRESSO CONSIDERAR PIRATARIA - CÓPIA NÃO AUTORIZADA
UNINOVE

Rev. B

Engenharia de Avaliações e Perícias
Manutenção Predial e Avaliação de Máquinas
e Equipamentos

16/07/2011
Folha 305/424

10.3.1 - ACESSOS E CIRCULAÇÃO:
Devem ser projetados levando em conta as características do público alvo,
além de contemplar o acesso de P.C.R, P.M.R e P.O.
Os pisos devem ter superfície regular, e possuir pisos podátil de alerta
(utilizado para sinalizar situações que envolvem risco de segurança) e piso tátil
direcional (utilizado quando da ausência ou descontinuidade de linha-guia
identificável, como guia de caminhamento em ambientes internos ou externos,
ou quando houver caminhos preferenciais de circulação), além de se evitar os
desníveis (eventuais desníveis no piso de até 5 mm não demandam tratamento
especial. Desníveis superiores a 5 mm até 15 mm devem ser tratados em
forma de rampa, com inclinação máxima de 1:2 ).

Perspectiva da rampa de acesso

Elaborado por:

Analisado por:

Professor :

Marcelo Gandra Falcone

Alessandra Aparecida Vieira

Marcelo Gandra Falcone

QUANDO IMPRESSO CONSIDERAR PIRATARIA - CÓPIA NÃO AUTORIZADA
UNINOVE

Rev. B

Engenharia de Avaliações e Perícias
Manutenção Predial e Avaliação de Máquinas
e Equipamentos

16/07/2011
Folha 306/424

Planta da rampa de acesso

Os corredores devem obedecer as larguras conforme a tabela abaixo:

As escadas de acesso devem possuir corrimãos contínuos de ambos os lados,
com sinalização em braile no final do corrimão, além de sinalização de piso
podátil sempre que começar ou terminar um desnível, ale de que nas escadas
de segurança dever ser projetado um espaço específico para cadeiras de
rodas, conforme as figuras abaixo:

Elaborado por:

Analisado por:

Professor :

Marcelo Gandra Falcone

Alessandra Aparecida Vieira

Marcelo Gandra Falcone

QUANDO IMPRESSO CONSIDERAR PIRATARIA - CÓPIA NÃO AUTORIZADA
UNINOVE

Rev. B

Engenharia de Avaliações e Perícias
Manutenção Predial e Avaliação de Máquinas
e Equipamentos

16/07/2011
Folha 307/424

Sempre na concepção do projeto, deve ser prevista a sinalização informativa,
indicativa e direcional da localização das entradas acessíveis.
Nas áreas de resgate deve ser previsto o espaço para um M.R. a cada 500
pessoas ou fração.
As bilheterias devem ser adaptadas, de forma a um cadeirante poder acessá-la
de forma autônoma.

No caso de não ser possível o acesso em nível, ou a construção de rampas,
um meio de prover o acesso do portador de deficiência ao local, é a utilização
de plataforma de transporte fixado ao corrimão das escadas, ou plataformas do
tipo elevador.

Elaborado por:

Analisado por:

Professor :

Marcelo Gandra Falcone

Alessandra Aparecida Vieira

Marcelo Gandra Falcone

QUANDO IMPRESSO CONSIDERAR PIRATARIA - CÓPIA NÃO AUTORIZADA
UNINOVE

Rev. B

Engenharia de Avaliações e Perícias
Manutenção Predial e Avaliação de Máquinas
e Equipamentos

16/07/2011
Folha 308/424

Nos ambientes internos a edificação, o deficiente deve ter acesso a todos os
locais que tenham público, e que, no caso de edificações com mais de um
pavimento e que se utilizem de elevadores, estes devem ser adaptados, como
segue:

Elaborado por:

Analisado por:

Professor :

Marcelo Gandra Falcone

Alessandra Aparecida Vieira

Marcelo Gandra Falcone

QUANDO IMPRESSO CONSIDERAR PIRATARIA - CÓPIA NÃO AUTORIZADA
UNINOVE

Rev. B

Engenharia de Avaliações e Perícias
Manutenção Predial e Avaliação de Máquinas
e Equipamentos

16/07/2011
Folha 309/424

10.3.2 - SANITÁRIOS:
Os sanitários e vestiários acessíveis devem localizar-se em rotas acessíveis,
próximos à circulação principal, preferencialmente próximo ou integrados às
demais instalações sanitárias, e ser devidamente sinalizados.
Os sanitários e vestiários de uso comum ou uso público devem ter no mínimo
5% do total de cada peça instalada acessível, respeitada no mínimo uma de
cada. Quando houver divisão por sexo, as peças devem ser consideradas
separadamente para efeito de cálculo. Recomenda-se a instalação de uma
bacia infantil para uso de crianças e de pessoas com baixa estatura.

Planta de sanitário adaptado

Foto de sanitário adaptado
Elaborado por:

Analisado por:

Professor :

Marcelo Gandra Falcone

Alessandra Aparecida Vieira

Marcelo Gandra Falcone

QUANDO IMPRESSO CONSIDERAR PIRATARIA - CÓPIA NÃO AUTORIZADA
UNINOVE

Rev. B

Engenharia de Avaliações e Perícias
Manutenção Predial e Avaliação de Máquinas
e Equipamentos

16/07/2011
Folha 310/424

Vista de sanitário adaptado

Vista lateral de sanitário adaptado

Elaborado por:

Analisado por:

Professor :

Marcelo Gandra Falcone

Alessandra Aparecida Vieira

Marcelo Gandra Falcone

QUANDO IMPRESSO CONSIDERAR PIRATARIA - CÓPIA NÃO AUTORIZADA
UNINOVE

Rev. B

Engenharia de Avaliações e Perícias
Manutenção Predial e Avaliação de Máquinas
e Equipamentos

16/07/2011
Folha 311/424

10.2.3 - MOBILIÁRIO
Quantidade dos espaços para P.C.R. e assentos para P.M.R. e P.O.
A quantidade dos espaços deve estar de acordo com a tabela abaixo:
Capacidade total
de assentos

Espaços para P.C.R

Assento para
P.M.R

Assento P.O.
Alteração

Até 25
De 26 a 50
De 51 a 100
De 101 a 200
De 201 a 500
De 501 a 1 000

1
2
3
4
2% do total
10 espaços, mais 1% do
que exceder 500.
15 espaços, mais 0,1%
do que exceder 1000.

1
1
1
1
1%
1%

1
1
1
1
1%
1%

10 assentos
mais 0,1% do
que exceder
1000.

10 assentos
mais 0,1% do
que exceder
1000.

Acima de 1 000

10.3.3.1 - Localização dos espaços para P.C.R. e assentos para P.M.R. e
P.O.
Em cinemas, a distância mínima para a localização dos espaços para P.C.R. e
os assentos para P.M.R. deve ser calculada traçando-se um ângulo visual de
no máximo 30º a partir do limite superior da tela até a linha do horizonte visual
com altura de 1,15 m do piso.

Elaborado por:

Analisado por:

Professor :

Marcelo Gandra Falcone

Alessandra Aparecida Vieira

Marcelo Gandra Falcone

QUANDO IMPRESSO CONSIDERAR PIRATARIA - CÓPIA NÃO AUTORIZADA
UNINOVE

Rev. B

Engenharia de Avaliações e Perícias
Manutenção Predial e Avaliação de Máquinas
e Equipamentos

16/07/2011
Folha 312/424

10.3.3.2 - Ângulo visual dos espaços para P.C.R. em cinemas — Exemplo
Em teatros, auditórios ou similares, a localização dos espaços para P.C.R. e
dos assentos para P.M.R. deve ser calculada de forma a garantir a visualização
da atividade desenvolvida no Palco.

Ângulo visual dos espaços para P.C.R. em teatros — Exemplo
A localização dos espaços deve ser calculada traçando-se um ângulo visual de
30º a partir do limite superior da boca de cena até a linha do horizonte visual
(L.H.), com a altura de 1,15 m do piso.
A altura do piso do palco deve ser inferior à L.H. visual com altura de 1,15 m do
piso da localização do espaço para P.C.R. e assentos para P.M.R.
Quando existir anteparo em frente aos espaços para P.C.R., sua altura e
distância não devem bloquear o ângulo visual de 30º medido a partir da linha
visual padrão com altura de 1,15 m do piso até o limite inferior da tela ou local
do palco onde a atividade é desenvolvida.

Anteparos em arquibancadas — Vista lateral – Exemplo
Elaborado por:

Analisado por:

Professor :

Marcelo Gandra Falcone

Alessandra Aparecida Vieira

Marcelo Gandra Falcone

QUANDO IMPRESSO CONSIDERAR PIRATARIA - CÓPIA NÃO AUTORIZADA
UNINOVE

Rev. B

Engenharia de Avaliações e Perícias
Manutenção Predial e Avaliação de Máquinas
e Equipamentos

16/07/2011
Folha 313/424

10.3.3.3 - Dimensões dos espaços para P.C.R. e assentos para P.M.R. e
P.O.
O espaço para P.C.R. deve possuir as dimensões mínimas de 0,80 m por 1,20
m, acrescido de faixa de no mínimo 0,30 m de largura, localizada na frente,
atrás ou em ambas posições.
Os espaços para P.C.R. devem estar deslocados 0,30 m em relação à cadeira
ao lado para que a pessoa em cadeira de rodas e seus acompanhantes fiquem
na mesma direção. Quando os espaços para P.C.R. estiverem localizados em
fileiras intermediárias, devem ser garantidas faixas de no mínimo 0,30 m de
largura atrás e na frente deles.
Os assentos para P.O. devem ter largura equivalente à de dois assentos
adotados no local e possuir um espaço livre frontal de no mínimo 0,60 m,
conforme figura 152. Estes assentos devem suportar uma carga de no mínimo
250 kg.

Planta da disposição dos assentos

Elaborado por:

Analisado por:

Professor :

Marcelo Gandra Falcone

Alessandra Aparecida Vieira

Marcelo Gandra Falcone

QUANDO IMPRESSO CONSIDERAR PIRATARIA - CÓPIA NÃO AUTORIZADA
UNINOVE

Rev. B

Engenharia de Avaliações e Perícias
Manutenção Predial e Avaliação de Máquinas
e Equipamentos

16/07/2011
Folha 314/424

Espaços para P.C.R.

Fotos de locais reservados para cadeirantes

Foto de bebedouro acessível
Elaborado por:

Analisado por:

Professor :

Marcelo Gandra Falcone

Alessandra Aparecida Vieira

Marcelo Gandra Falcone

QUANDO IMPRESSO CONSIDERAR PIRATARIA - CÓPIA NÃO AUTORIZADA
UNINOVE

Rev. B

Engenharia de Avaliações e Perícias
Manutenção Predial e Avaliação de Máquinas
e Equipamentos

16/07/2011
Folha 315/424

10.3.3.4 - Palco e bastidores
Uma rota acessível deve interligar os espaços para P.C.R. ao palco e aos
bastidores.
Quando houver desnível entre o palco e a platéia, este pode ser vencido
através de rampa com as seguintes características:
a) largura de no mínimo 0,90 m;
b) inclinação máxima de 1:6 (16,66%) para vencer uma altura máxima de 0,60
m;
c) inclinação máxima de 1:10 (10%) para vencer alturas superiores a 0,60 m;
d) ter guia de balizamento, não sendo necessária a instalação de guarda-corpo
e corrimão.
.
10.3.3.5 – Camarins
Pelo menos um camarim para cada sexo deve ser acessível. Quando somente
existir um camarim de uso unissex, este deve ser acessível.

10.3.3.6 - Dispositivos de tecnologia assistiva
Devem ser disponibilizados dispositivos de tecnologia assistiva para atender no
palco as pessoas com deficiência visual e pessoas com deficiência auditiva.
10.3.3.7 - Locais de exposições
Todos os elementos expostos para visitação pública devem estar em locais
acessíveis.
Os títulos, textos explicativos ou similares devem também estar em Braille.

10.3.3.8 - Restaurantes, refeitórios, bares e similares
Os restaurantes, refeitórios e bares devem possuir pelo menos 5% do total de
mesas, com no mínimo uma, acessíveis a P.C.R.
As mesas devem ser distribuídas de forma a estar integradas às demais e em
locais onde sejam oferecidos todas as comodidades e serviços disponíveis no
estabelecimento.

Elaborado por:

Analisado por:

Professor :

Marcelo Gandra Falcone

Alessandra Aparecida Vieira

Marcelo Gandra Falcone

QUANDO IMPRESSO CONSIDERAR PIRATARIA - CÓPIA NÃO AUTORIZADA
UNINOVE

Rev. B

Engenharia de Avaliações e Perícias
Manutenção Predial e Avaliação de Máquinas
e Equipamentos

16/07/2011
Folha 316/424

3) Parte: Avaliação Industrial: Máquinas e Equipamentos
0. OBJETIVO DA 3ª PARTE:

Expor metodologia para Avaliação de Máquinas e Equipamentos com os 2
Tipos de avaliação, normas e finalidades; apresentação da NBR 14.653-5/2006
– norma técnica da ABNT que dispõe sobre avaliação de bens – parte 5:
máquinas, equipamentos, instalações bens industriais em geral; conceituação
básica e definições; metodologia aplicável; especificação das avaliações
quanto à fundamentação; critérios de depreciação; trabalhos preparatórios e
desenvolvimento de campo; elaboração de Laudo Prático – exemplo prático –
quadro com o modelo de Laudo de Avaliação de Máquinas, equipamentos e
instalações Industriais; vida útil e tabelas de vida útil econômica.
1. A AVALIAÇÃO

1.1 ESTIMATIVA DE PREÇO E AVALIAÇÃO
Estimativa de preço pode ser definida como orçamento preliminar e Avaliação
como a determinação técnica do valor de um imóvel, de um fruto, equipamento
ou de um direito.
O resultado técnico de uma avaliação é o laudo, onde são apresentados
todos os elementos esclarecedores e as suas conclusões da avaliação.

1.2 A AVALIAÇÃO COMO ESPÉCIE DO GÊNERO PERÍCIA
A. CONCEITO
A avaliação técnica de qualquer bem se respalda na Lei federal nº
5.194/66, de 24/12/66, que diz:
Avaliações, vistorias, perícias e pareceres são atribuições
de Engenheiros, Arquitetos e Agrônomos, devidamente
registrados no CREA.

Resolução nº 218, de 29/06/1973, do CONFEA, que fixa as atribuições
profissionais do Engenheiro, Arquiteto e Engenheiro Agrônomo nas diversas
modalidades
Elaborado por:

Analisado por:

Professor :

Marcelo Gandra Falcone

Alessandra Aparecida Vieira

Marcelo Gandra Falcone

QUANDO IMPRESSO CONSIDERAR PIRATARIA - CÓPIA NÃO AUTORIZADA
UNINOVE

Rev. B

Engenharia de Avaliações e Perícias
Manutenção Predial e Avaliação de Máquinas
e Equipamentos

16/07/2011
Folha 317/424

Resolução nº 345, de 27/07/1990, do CONFEA, que dispõe quanto ao exercício
por profissional de nível superior das atividades de Engenharia de Avaliações e
Perícias de Engenharia. As perícias e avaliações de bens móveis e imóveis,
suas partes integrantes e pertences, máquinas e instalações industriais, obras,
serviços, bens e direitos, é matéria essencialmente técnica que exige
qualificação específica. As perícias e avaliações desses bens é função do
diplomado em Engenharia, Arquitetura, Agronomia, Geologia, Geografia e
Meteorologia, dentro das respectivas atribuições fixadas no Art. 7º, alínea "c",
da Lei nº 5.194, de 24 DEZ 1966, e discriminadas pela Resolução nº 218, de 29
JUN 1973; o disposto na Lei nº 7.270, de 10 DEZ 1984; nada obstante, as
dúvidas que ainda surgem por parte de órgãos e entidades na aplicação de
normas que exigem laudos de avaliação e perícia para determinados efeitos
legais, tais como Lei nº 6.404/76, de 15 DEZ 1976, Lei nº 24.150/34 e Lei nº
6.649/79;o disposto nas Leis nº 8.020 e 8.031, ambas de 12 ABR 1990,

As diretrizes para se avaliar estão preconizadas na norma brasileira, elaborada
na ABNT- Associação Brasileira de Normas Técnicas, NBR 14653 AVALIAÇÃO DE BENS e é composta pelas seguintes partes:








Avaliação de bens – Parte 1: Procedimentos gerais.
Avaliação de bens – Parte 2: Imóveis urbanos.
Avaliação de bens – Parte 3: Imóveis rurais.
Avaliação de bens – Parte 4: Empreendimentos.
Avaliação de bens – Parte 5: Máquinas, equipamentos, instalações e
bens industriais em geral.
Avaliação de bens – Parte 6: Recursos naturais e ambientais (Em
elaboração).
Avaliação de bens – Parte 7: Patrimônios históricos (Em elaboração).

Decreto Federal nº 81.621, de 03/05/1978, que aprova o Quadro Geral de
Unidades de Medida

OBS: Antes da Norma: NBR 14.653 =-Avaliação de bens – Parte 5: Máquinas,
equipamentos, instalações e bens industriais em geral, a norma utilizada era a
NORMA BRASILEIRA ABNT NBR 8977:1985 - Avaliação de máquinas,
equipamentos, instalações e complexos industriais. Ele teve seu
CANCELAMENTO COM SUBSTITUIÇÂO, publicado em 05.06.2006 e válido a
partir de 05.07.2006. O cancelamento com substituição da ABNT NBR
8977:1985 foi solicitado pelo Comitê Brasileiro de Construção Civil (ABNT/CB02), por intermédio da Comissão de Estudo de Avaliação na Construção Civil

Elaborado por:

Analisado por:

Professor :

Marcelo Gandra Falcone

Alessandra Aparecida Vieira

Marcelo Gandra Falcone

QUANDO IMPRESSO CONSIDERAR PIRATARIA - CÓPIA NÃO AUTORIZADA
UNINOVE

Rev. B

Engenharia de Avaliações e Perícias
Manutenção Predial e Avaliação de Máquinas
e Equipamentos

16/07/2011
Folha 318/424

B. OBJETIVO

Determinação de valor para:
−
−
−
−
−
−
−
−
−
−

Garantia de operações
Compra e venda
Locação
Ações judiciais
Valores de impostos prediais, territoriais, de transmissão
Planta de valores genéricos
Decisão sobre investimentos
Seguros
Fusões ou cisões de empresas
Servidões de passagem

C. PRINCÍPIOS GERAIS DE AVALIAÇÃO
I – PRINCÍPIO OU “LEI” DA OFERTA E DA PROCURA (“SUPPLY AND
DEMAND”)
Essa “lei” é bem conhecida por todos em vários nichos de mercado, não é
diferente do mercado imobiliário, havendo o equilíbrio do preço médio de
mercado no equilíbrio da oferta e da procura.
II – PRINCÍPIO DA PERMANÊNCIA (“PERMANENCE”)
Princípio que, embora reconheça a variabilidade dos preços ao longo do
tempo, admite que mantidas as condições do bem e do mercado vigentes por
ocasião da avaliação, existe um lapso de tempo em que os preços podem se
manter constantes.
Elaborado por:

Analisado por:

Professor :

Marcelo Gandra Falcone

Alessandra Aparecida Vieira

Marcelo Gandra Falcone

QUANDO IMPRESSO CONSIDERAR PIRATARIA - CÓPIA NÃO AUTORIZADA
UNINOVE

Rev. B

Engenharia de Avaliações e Perícias
Manutenção Predial e Avaliação de Máquinas
e Equipamentos

16/07/2011
Folha 319/424

III – PRINCÍPIO DA PROPORCIONALIDADE (“PROPORTION PRINCIPLE”)
Princípio segundo o qual dois bens semelhantes, em mercados
semelhantes, têm preços semelhantes. Em conseqüência, as eventuais
diferenças de preços serão proporcionais às diferenças entre as
características dos bens e dos respectivos mercados.
Esta condição é a ideal em uma avaliação, pois nesse caso, estaríamos
avaliando bens semelhantes comparando-os entre si. Esta metodologia é
denominada na Engenharia de Avaliações como “Método Comparativo Direto”.
IV – PRINCÍPIO DA SUBSTITUIÇÃO, OU DA EQUIVALÊNCIA
(“SUBSTITUTION PRINCIPLE”)
Princípio segundo o qual dois bens fungíveis, em mercados semelhantes,
têm preços
equivalentes, numa certa data.
V – PRINCÍPIO DA RENTABILIDADE (“RENT PRINCIPLE”)
Princípio segundo o qual o valor de um imóvel que se encontra em exploração
econômica é função da expectativa de renda que previsivelmente
proporcionará no futuro.
VI – PRINCÍPIO DA FINALIDADE (“FINALITY PRINCIPLE”)
Princípio segundo o qual a finalidade da avaliação condiciona o método e as
técnicas de avaliação a serem empregadas.
Este princípio é um dos principais que regem as Normas Avaliatórias e a
Engenharia de Avaliações.
VII – PRINCÍPIO DO MAIOR E MELHOR USO (“HIGHEST AND BEST USE”)
Princípio segundo o qual o valor de um bem, independentemente do uso ou do
seu aproveitamento,
será
o que
resulte
economicamente
mais
aconselhável, dentro das possibilidades legais e físicas, e desde que
absorvíveis pelo mercado.
VIII – PRINCÍPIO DA PROBABILIDADE (“PROBABILITY PRINCIPLE”)
Princípio segundo o qual quando existirem vários cenários ou
possibilidades de eleição razoáveis, devem ser escolhidos aqueles que
possam ser considerados os mais prováveis.
IX – PRINCÍPIO DA PRUDÊNCIA (“PRUDENCE PRINCIPLE”)
Princípio segundo o qual são adotados os valores mais conservadores que
permitam maior liquidez ao bem. À prudência se junta o bom senso do
avaliador.
X – PRINCÍPIO DA TRANSPARÊNCIA (“TRANSPARENCY PRINCIPLE”)
Princípio segundo o qual o laudo ou parecer avaliatório de um bem deve conter
a informação necessária e suficiente para sua fácil compreensão e detalhar
as hipóteses e documentações utilizadas.
Elaborado por:

Analisado por:

Professor :

Marcelo Gandra Falcone

Alessandra Aparecida Vieira

Marcelo Gandra Falcone

QUANDO IMPRESSO CONSIDERAR PIRATARIA - CÓPIA NÃO AUTORIZADA
UNINOVE

Rev. B

Engenharia de Avaliações e Perícias
Manutenção Predial e Avaliação de Máquinas
e Equipamentos

16/07/2011
Folha 320/424

2. PREÇO, CUSTO, MERCADO, VALOR E UTILIDADE

A imprecisão da linguagem nos diferentes segmentos profissionais pode dar
lugar a más interpretações e maus entendidos. Este é um problema particular
quando as palavras de uso comum em um idioma, também têm especiais
significados dentro de certa disciplina. É o caso dos termos, preço, custo,
mercado e valor quando utilizados na disciplina da avaliação.

2.1 CUSTO
É o preço pago pelos bens e serviços ou a quantidade requerida para
criar ou produzir o bem ou o serviço. Se considerada para reposição de
determinado bem, pode ser direto ou indireto:


CUSTO DIRETO DE PRODUÇÃO: Gastos com insumos, inclusive mão
de obra, na produção de um bem.



CUSTO INDIRETO DE PRODUÇÃO: Despesas administrativas e
financeiras, benefícios e demais ônus e encargos necessários à produção
de um bem.

Elaborado por:

Analisado por:

Professor :

Marcelo Gandra Falcone

Alessandra Aparecida Vieira

Marcelo Gandra Falcone

QUANDO IMPRESSO CONSIDERAR PIRATARIA - CÓPIA NÃO AUTORIZADA
UNINOVE

Rev. B

Engenharia de Avaliações e Perícias
Manutenção Predial e Avaliação de Máquinas
e Equipamentos

16/07/2011
Folha 321/424

Estes custos podem levar em conta a depreciação, assim definida:


CUSTO DE REEDIÇÃO: Custo de reprodução, descontada
depreciação do bem, tendo em vista o estado em que se encontra.

a



CUSTO DE REPRODUÇÃO: Gasto necessário para reproduzir um bem,
sem considerar eventual depreciação.

2.2 PREÇO
É um termo que se utiliza para a quantidade inicial que se pede, oferece ou
pagamento por um bem ou serviço. O preço de venda é um fato histórico,
desde que seja revelado publicamente e de forma correta. Devido às
capacidades financeiras, às motivações ou interesses especiais de certo
comprador e/ou vendedor, o preço que se paga pelos bens ou serviços
pode ou não ter alguma relação com o valor que outros atribuem aos bens ou
serviços. Entretanto, o preço geralmente é um indicador de um valor relativo
que o comprador e/ou vendedor particular dão aos bens ou serviços sob
circunstâncias particulares.

2.3 MERCADO
É o contexto no qual se comercializam bens e serviços entre compradores e
vendedores através de um mecanismo de preços.
O conceito de mercado implica que os bens e/ou serviços podem ser
comercializados entre compradores e vendedores sem que exista qualquer
relação prévia entre os mesmos.
Cada uma das partes responderá às relações de oferta e demanda e a outros
fatores de fixação de preços às necessidades e desejos individuais, assim
como às suas capacidades e conhecimentos, com entendimento da utilidade
relativa dos bens e / ou serviços. O mercado pode ser local, regional, nacional
ou internacional.
Quando se alteram ou interrompem as condições normais do mercado, ou
quando o desequilíbrio entre a oferta e a demanda dá origem a preços de
mercado que não satisfazem a definição de Valor de Mercado, o Avaliador
enfrentará um difícil problema de avaliação. Conforme aumentam a
indisponibilidade e a aplicabilidade dos dados de mercado, a tarefa de
avaliação pode exigir maior grau de competência, experiência e
julgamento por parte do Avaliador, assim como a aplicação mais cuidadosa
dos princípios avaliatórios. Quanto mais restrito for o mercado, o processo
avaliatório apresentará maiores dificuldades.

Elaborado por:

Analisado por:

Professor :

Marcelo Gandra Falcone

Alessandra Aparecida Vieira

Marcelo Gandra Falcone

QUANDO IMPRESSO CONSIDERAR PIRATARIA - CÓPIA NÃO AUTORIZADA
UNINOVE

Rev. B

Engenharia de Avaliações e Perícias
Manutenção Predial e Avaliação de Máquinas
e Equipamentos

16/07/2011
Folha 322/424

2.4 UTILIDADE
É um termo relativo ou comparativo e não uma condição absoluta que reflete o
potencial de uso e vocação de um bem. Pode ser refletido em leis de usos e
ocupação de planos urbanos, e mensurados em zonas homogêneas de
ocupação.
Um dos critérios chaves na avaliação de qualquer bem é a sua utilidade. Os
procedimentos que se empregam no processo de avaliação têm o objetivo
comum identificar o grau de utilidade do bem que se está avaliando. Este
processo requer a interpretação do conceito de utilidade. A utilidade é um
termo relativo ou comparativo e não uma condição absoluta. Por exemplo, a
utilidade de um terreno agrícola se mede normalmente por sua capacidade de
uso de solo, mensurado nas notas agronômicas, e seus valores, em condições
normais, se aterão as suas capacidades de uso. Entretanto para um terreno
urbano, seu potencial estará refletido na capacidade de ocupação e uso
definidos pelas leis vigentes, e por sua vocação definida pelo mercado, como
conseqüência, o valor do terreno se estabelece avaliando sua utilidade
em termos dos fatores legais, físicos, funcionais, econômicos e ambientais
que define sua capacidade produtiva. Fundamentalmente, a avaliação de
bens se rege pela forma específica em que se utiliza a propriedade e / ou como
se comercializaria normalmente no mercado. Para certas propriedades, a
melhor utilidade se obtém se a propriedade em questão opera de maneira
individual. Outras propriedades têm maior utilidade se operarem como
parte de um grupo de propriedades, por exemplo, uma rede de lojas pode
valer mais do que a soma dos valores das lojas. Portanto, deve-se diferenciar a
utilidade de uma propriedade individual e a uma propriedade que é parte de um
grupo. O Avaliador deve enfocar um bem como seu mercado o considera, se
como unidade isolada, ou integrado a outros bens. Tipicamente, o Avaliador
estima e informa o valor da propriedade como uma entidade individual. As
propriedades isoladas que constituem operações independentes autocontidas, normalmente trocam de dono de maneira individual e são valoradas
desta forma. Se tais propriedades tivessem agregarem valor com a associação
funcional ou econômica com outras propriedades, este valor adicional ou
especial pode ser considerado. Entretanto o avaliador deve fazer as ressalvas
ou explicitar as condições que suportam este valor. Este fato é muito comum
em terrenos contíguos em áreas de incorporações imobiliárias A utilidade
se mede com uma perspectiva de longo prazo, geralmente durante a vida útil
normal de uma propriedade ou grupo de propriedades. Entretanto, há
ocasiões em que algumas propriedades se tornam obsoletas, ou são
eliminadas da produção, podem adaptar-se a um uso ou função diversa,
ou talvez simplesmente estejam inativas durante um tempo específico.
Em outros casos, as circunstâncias do mercado externo, sejam políticas ou
econômicas, podem reger a redução na produção por um período de tempo
indefinido. Nestes casos é muito importante, relevar as condições do mercado
e os alcances do seu relatório, e definir claramente que valor foi apresentado.
Elaborado por:

Analisado por:

Professor :

Marcelo Gandra Falcone

Alessandra Aparecida Vieira

Marcelo Gandra Falcone

QUANDO IMPRESSO CONSIDERAR PIRATARIA - CÓPIA NÃO AUTORIZADA
UNINOVE

Rev. B

Engenharia de Avaliações e Perícias
Manutenção Predial e Avaliação de Máquinas
e Equipamentos

16/07/2011
Folha 323/424

2.5 VALOR
É um conceito econômico e não um fato. É uma estimação do preço
que se pagará pelos bens ou serviços em um dado momento, de acordo com
uma finalidade particular da avaliação para uma data de referência.

2.6 VALOR DE MERCADO E OUTROS CONCEITOS DE VALOR
BEM SIMILAR: Bem com características relevantes na formação de valor,
equivalentes às do avaliando, tais como função, desempenho operacional e
estrutura construtiva
CUSTO DIRETO DE INSTALAÇÃO: Recursos monetários referentes aos
gastos de montagem, bases e estruturas específicas de apoio, fretes, taxas e
impostos diretos
CUSTO INDIRETO DE INSTALAÇÃO: Recursos monetários referentes a
projetos, gerenciamento da montagem, "start-up", taxas e impostos inerentes e
despesas financeiras
DEPRECIAÇÃO INICIAL: Perda de valor de um bem em função da
descaracterização do bem como novo
DEPRECIAÇÃO POR DESMONTAGEM: Depreciação de um bem devido a
efeitos deletérios decorrentes dos trabalhos normais necessários à remoção do
equipamento
EQUIPAMENTO: Qualquer unidade auxiliar componente de máquina
GOOD-WILL: Diferença, quando positiva, entre o valor econômico e o valor
patrimonial, aplicável a uma unidade industrial
IDADE APARENTE: Idade estimada de um bem, em função de suas
características e estado de conservação no momento da vistoria
INSTALAÇÕES: Conjunto de materiais, sistemas, redes, equipamentos e
serviços, para apoio operacional a uma máquina isolada, linha de produção ou
unidade industrial, conforme o grau de agregação.
LINHA DE PRODUÇÃO: Conjunto de bens (máquinas, equipamentos,
acessórios, dispositivos e instalações, entre ouros) integrados em um processo
produtivo.

Elaborado por:

Analisado por:

Professor :

Marcelo Gandra Falcone

Alessandra Aparecida Vieira

Marcelo Gandra Falcone

QUANDO IMPRESSO CONSIDERAR PIRATARIA - CÓPIA NÃO AUTORIZADA
UNINOVE

Rev. B

Engenharia de Avaliações e Perícias
Manutenção Predial e Avaliação de Máquinas
e Equipamentos

16/07/2011
Folha 324/424

LIQÜIDAÇÃO FORÇADA: Condição relativa à hipótese de uma venda
compulsória ou em prazo menor que o médio de absorção pelo mercado.
MÁQUINA: Todo e qualquer aparelho, composto por um ou mais
equipamentos, destinado a executar uma ou mais funções específicas a um
trabalho ou à produção industrial.
MANUTENÇÃO: Conjunto de ações preventivas ou corretivas necessárias para
preservar as condições normais de utilização de um bem.
MANUTENÇÃO CORRETIVA: Conjunto de ações que visam corrigir falhas
operacionais de um bem.
MANUTENÇÃO PREVENTIVA: Conjunto de ações de caráter programado em
um bem, envolvendo a inspeção ou troca prévia de componentes, de acordo
com planejamento que vise garanti o seu perfeito funcionamento
MANUTENÇÃO PREDITIVA: Conjunto de ações de caráter programado em um
bem, por meio de monitoramento contínuo de seus componentes e com o
auxílio de inspeção não destrutiva (análise de vibrações, termografia, entre
outros)
MÓDULO: Conjunto de máquinas, equipamentos e instalações que constitui
uma unidade integrada a um processo, segmento ou etapa de produção e que
pode ser montado ou fabricado externamente (exemplos: city-gates,
subestação elétrica compacta, turbinas e outros)
PREÇO DE LIQUIDAÇÃO FORÇADA: Quantia auferível pelo bem na hipótese
de uma venda compulsória ou em prazo menor que o médio de absorção pelo
mercado
SALVADO: Objeto que se consegue resgatar de um sinistro e que ainda possui
valor
SEGURO: Transferência de risco garantida por contrato, pelo qual uma das
partes se obriga, mediante cobrança de prêmio, a indenizar a outra pela
ocorrência de sinistro coberto pela apólice
SINISTRO: Evento que causa perda financeira
SISTEMA: Conjunto de máquinas, equipamentos e instalações para serviços
específicos da unidade industrial. Exemplo: sistema de vapor, elétrico, ar
comprimido, etc.
SISTEMA INTEGRADO: Conjunto de máquinas ou equipamentos projetado
para executar um determinado trabalho ou função, de forma sincronizada, por
meio de ligações de qualquer natureza, que é avaliado em grupo
Elaborado por:

Analisado por:

Professor :

Marcelo Gandra Falcone

Alessandra Aparecida Vieira

Marcelo Gandra Falcone

QUANDO IMPRESSO CONSIDERAR PIRATARIA - CÓPIA NÃO AUTORIZADA
UNINOVE

Rev. B

Engenharia de Avaliações e Perícias
Manutenção Predial e Avaliação de Máquinas
e Equipamentos

16/07/2011
Folha 325/424

UNIDADE INDUSTRIAL: Conjunto de terreno, infra-estruturas, edificações e
benfeitorias, máquinas, equipamentos, instalações, móveis e utensílios,
destinados à produção industrial
VALOR DE DESMONTE: Custo de reedição no fornecedor de um bem ou
conjunto de bens, deduzidas as despesas de desmontagem, remoção, revisão,
recondicionamento e comercialização. Valor Patrimonial para uma situação
em que o empreendimento não apresente atratividade econômica.
VALOR ECONÔMICO: Valor presente da renda líquida auferível pelo módulo
ou unidade industrial, durante sua vida econômica, a uma taxa de desconto
correspondente ao custo de oportunidade de igual risco
VALOR DE MERCADO: Quantia mais provável pela qual se negociaria
voluntariamente e conscientemente um bem, numa data de referência,
dentro das condições do mercado vigente.
VALOR DE MERCADO PARA COMPRA : Valor provável pelo qual o
proprietário industrial reporia um bem isolado no mercado, no estado em que
se encontra. Exemplo: aquisição de máquinas operatrizes pela indústria no
mercado de usados
VALOR DE MERCADO PARA VENDA: Valor provável que o proprietário
industrial de um bem isolado obteria no mercado para a sua venda no estado e
no local em que se encontra
VALOR EM RISCO: Valor representativo da parcela do bem que se deseja
segurar.
VALOR PATRIMONIAL: Valor correspondente à totalidade dos bens de pessoa
física ou jurídica.
VALOR RESIDUAL: Quantia representativa do valor do bem ao final de sua
vida útil.
VALOR DE INDENIZAÇÃO: Valor de bens, não obrigatoriamente de
mercado, destinado a ressarcimento de prejuízos em desapropriações,
servidões ou congêneres, reedição ou re-composição de bens.
VALOR EM RISCO: Valor representativo da parcela do bem que se deseja
segurar e que pode corresponder ao valor máximo segurável
VALOR DE SUCATA: Valor de mercado dos materiais reaproveitáveis de um
bem, na condição de desativação, sem que estes sejam utilizados para fins
produtivos
Elaborado por:

Analisado por:

Professor :

Marcelo Gandra Falcone

Alessandra Aparecida Vieira

Marcelo Gandra Falcone

QUANDO IMPRESSO CONSIDERAR PIRATARIA - CÓPIA NÃO AUTORIZADA
UNINOVE

Rev. B

Engenharia de Avaliações e Perícias
Manutenção Predial e Avaliação de Máquinas
e Equipamentos

16/07/2011
Folha 326/424

VALOR EM USO: Valor de um bem, em condições de operação, no estado
atual, como uma parte integrante útil de uma indústria, incluídas, quando
presentes, as despesas de projeto, embalagem, impostos, fretes e montagem
VALOR EM USO: Valor do bem em funcionamento, no estado de
funcionamento em que encontra, para um empreendimento, consideradas
suas respectivas instalações.
3. LAUDO DE AVALIAÇÃO

3.1 MODALIDADES DE LAUDOS
A ABNT através das normas de avaliação indica as seguintes modalidades
para apresentação de um laudo:
− Simplificado – contém de forma sucinta as informações necessárias ao seu
entendimento.
− Completo – contém todas as informações necessárias e suficientes
para ser auto explicável.

3.2 ROTEIRO BÁSICO DE APRESENTAÇÃO DE LAUDO
O laudo deverá conter pelo menos os seguintes títulos:
INTERESSADO
Pessoa física ou jurídica que encomendam o trabalho avaliatório.
PROPRIETÁRIO
Quando for possível a sua identificação.
OBJETIVO DO TRABALHO
− Objetivo da avaliação.
− Grau de detalhamento das atividades básicas.
− Especificação da avaliação (Para Oficiais, considerar sempre Parecer
Técnico).
INDIVIDUALIZAÇÃO DO OBJETO DA AVALIAÇÃO
Documentação
Solicitar ou buscar o fornecimento da documentação relativa ao bem,
necessária à realização do trabalho, como:
− Plantas, memoriais descritivos, notas fiscais, documentação fotográfica.
− Demais elementos que influem no valor total do bem (Fatores valorizantes
ou desvalorizastes decorrentes).
Elaborado por:

Analisado por:

Professor :

Marcelo Gandra Falcone

Alessandra Aparecida Vieira

Marcelo Gandra Falcone

QUANDO IMPRESSO CONSIDERAR PIRATARIA - CÓPIA NÃO AUTORIZADA
UNINOVE

Rev. B

Engenharia de Avaliações e Perícias
Manutenção Predial e Avaliação de Máquinas
e Equipamentos

16/07/2011
Folha 327/424

Conhecimento da Documentação:
Na impossibilidade da obtenção de toda a documentação necessária, o
avaliador deverá julgar sobre a possibilidade de elaborar a avaliação. Em caso
positivo, deverá deixar claramente expressas as ressalvas relativas à
insuficiência ou incoerência da informação, bem como os pressupostos
assumidos em função dessas condições.
VISTORIA
− NENHUMA AVALIAÇÃO PODERÁ PRESCINDIR DA VISTORIA. Em
casos excepcionais, quando for impossível o acesso ao bem avaliando,
admite-se a adoção de uma situação paradigma, que deverá ser explicitada no
laudo.
− A vistoria deve ser efetuada com o objetivo de conhecer e caracterizar o
bem avaliando e sua adequação ao seu segmento de mercado, daí resultando
condições para a orientação da coleta de dados.
− É recomendável registrar as características físicas e de utilização do
bem e outros aspectos relevantes à formação do valor.
− O conhecimento de estudos, projetos ou perspectivas tecnológicas que
possam vir a afetar o valor do bem avaliando deverá ser explicitado e suas
conseqüências apreciadas.

METODOLOGIA
A metodologia escolhida deve ser compatível com a natureza do bem
avaliando, a finalidade da avaliação e os dados de mercado disponíveis. Para
a identificação do valor de mercado, sempre que possível preferir o método
comparativo direto de dados de mercado, conforme definido no item 8.

PESQUISA DE VALORES
Coleta de Dados: É recomendável que seja planejada com antecedência, tendo
em vista: as características do bem avaliando, disponibilidade de recursos,
informações e pesquisas anteriores, plantas e documentos, prazo de
execução dos serviços, enfim, tudo que possa esclarecer aspectos
relevantes para a avaliação.
- Aspectos Quantitativos
É recomendável buscar a maior quantidade possível de dados de
mercado, com atributos comparáveis aos do bem avaliando.
Elaborado por:

Analisado por:

Professor :

Marcelo Gandra Falcone

Alessandra Aparecida Vieira

Marcelo Gandra Falcone

QUANDO IMPRESSO CONSIDERAR PIRATARIA - CÓPIA NÃO AUTORIZADA
UNINOVE

Rev. B

Engenharia de Avaliações e Perícias
Manutenção Predial e Avaliação de Máquinas
e Equipamentos

16/07/2011
Folha 328/424

- Aspectos Qualitativos
Na fase de coleta de dados é recomendável:
a) buscar dados de mercado com atributos mais semelhantes possíveis
aos do bem avaliando;
b) identificar e diversificar as fontes de informação, sendo que as
informações devem ser cruzadas, tanto quanto possível, com objetivo
de aumentar a confiabilidade dos dados de mercado;
c) identificar e descrever as características relevantes dos dados de
mercado coletados;
d) buscar dados de mercado de preferência contemporâneos com a data
de referência da avaliação. Na coleta de dados de mercado relativos a
ofertas é recomendável buscar informações sobre o tempo de
exposição no mercado e, no caso de transações, verificar a forma de
pagamento praticada e a data em que ocorreram.

DETERMINAÇÃO DO VALOR FINAL
- Tratamento dos Dados
Os dados devem ser tratados para obtenção de resultado confiável de acordo
com a metodologia escolhida.
A metodologia escolhida é a que melhor se aplica ao mercado de inserção do
bem, permitindo-se:
− Arredondar o resultado de sua avaliação, desde que o ajuste final não varie
mais de 1% do valor estimado;
− Indicar a faixa de variação de preços do mercado admitida como tolerável
em relação ao valor final, desde que indicada a probabilidade associada.
- Diagnóstico do Mercado: O avaliador, conforme a finalidade da avaliação,
deve analisar o mercado onde se situa o bem avaliando de forma a indicar,
no laudo, a liquidez deste bem e, tanto quanto possível, relatar a estrutura, a
conduta e o desempenho do mercado.
CONCLUSÕES
- Com os fundamentos resultantes da análise final.
DATA
− Da vistoria e do laudo.
− Nome e assinatura.
ANEXOS
− Plantas, documentação fotográfica, pesquisa de valores, etc.

Elaborado por:

Analisado por:

Professor :

Marcelo Gandra Falcone

Alessandra Aparecida Vieira

Marcelo Gandra Falcone

QUANDO IMPRESSO CONSIDERAR PIRATARIA - CÓPIA NÃO AUTORIZADA
UNINOVE

Rev. B

Engenharia de Avaliações e Perícias
Manutenção Predial e Avaliação de Máquinas
e Equipamentos

16/07/2011
Folha 329/424

4. UNIDADES LEGAIS DE MEDIDA

4.1 O SISTEMA INTERNACIONAL DE UNIDADES - SI
As informações aqui apresentadas irão ajudar você a compreender melhor e a
escrever corretamente as unidades de medida adotadas no Brasil. A
necessidade de medir é muito antiga e remonta à origem das civilizações. Por
longo tempo cada país, cada região, teve o seu próprio sistema de medidas,
baseado em unidades arbitrárias e imprecisas, como por exemplo, aquelas
baseadas no corpo humano: palmo, pé, polegada, braça.
Isso criava muitos problemas para o comércio, porque as pessoas de uma
região não estavam familiarizadas com o sistema de medida das outras
regiões. Imagine a dificuldade em comprar ou vender produtos cujas
quantidades eram expressas em unidades de medida diferentes e que não
tinham correspondência entre si.
Em 1789, numa tentativa de resolver o problema, o Governo Republicano
Francês pediu à Academia de Ciências da França que criasse um sistema de
medidas baseado numa "constante natural". Assim foi criado o Sistema
Métrico Decimal. Posteriormente, muitos outros países adotaram o sistema,
inclusive o Brasil, aderindo à "Convenção do Metro". O Sistema Métrico
Decimal adotou, inicialmente, três unidades básicas de medida: o metro, o litro
e o quilograma.
Entretanto, o desenvolvimento científico e tecnológico passou a exigir
medições cada vez mais precisas e diversificadas. Por isso, em 1960, o
sistema métrico decimal foi substituído pelo Sistema Internacional de Unidades
– SI, mais complexo e sofisticado, adotado também pelo Brasil em 1962 e
ratificado pela Resolução nº 12 de 1988 do Conselho Nacional de Metrologia,
Normalização e Qualidade Industrial - Conmetro, tornando-se de uso
obrigatório em todo o Território Nacional.
ATENÇÃO: CUIDADO AO ESCREVER!
PORTUGUÊS VIRAM MOTIVO DE PIADAS.

LAUDO COM ERROS DE

Elaborado por:

Analisado por:

Professor :

Marcelo Gandra Falcone

Alessandra Aparecida Vieira

Marcelo Gandra Falcone

QUANDO IMPRESSO CONSIDERAR PIRATARIA - CÓPIA NÃO AUTORIZADA
UNINOVE

Rev. B

Engenharia de Avaliações e Perícias
Manutenção Predial e Avaliação de Máquinas
e Equipamentos

16/07/2011
Folha 330/424

Escrever de forma simples e objetiva. Exemplo:
1) ADVOGADO
Fiz tão bem o meu curso de Direito que, no dia que me formei, processei a
Faculdade, ganhei a causa e recuperei todas as mensalidades que havia pago.
(Fred Allen)
Avaliação da situação pelo Advogado: Doutores, “Data Vênia”, após
apresentação dos autos as partes terão tempo para sustentação ante definir,
casuisticamente os fatos consignados e prolatados, caso o bastante, perfazem
o obstante causa para transito, da Prosopopéia para acalantar bovinos, com
direito a replicas e tréplicas “ad eternum” , surtem “periculum in moro”.

2) ENGENHEIRO ESPECIALISTA
Um especialista é aquele que explica algo fácil de maneira confusa, de tal modo que faz
você pensar que a confusão é culpa sua. (William Castle).
Avaliação da Situação pelo especialista: Colóquio para determinação
pluriconforme, entre representantes do Reino: Animalia, Filo: Chordata,
Classe: Mammalia, Ordem: Artiodactyla, Família: Bovidae, Subfamília:
Bovinaeda mesma espécie, Tribos Bovini, Boselaphini, Strepsicerotini, para
produzir efeitos causando um estado ordinário de consciência, complementar
ao da vigília (ou estado desperto), em que há repouso normal e periódico,
caracterizado, tanto no ser humano como nos outros vertebrados, pela
suspensão temporária da atividade perceptivo-sensorial e motora voluntária.

3) PERITO ENGENHEIRO/ARQUITETO:
Pra não engordar há quem coma somente verduras. Os elefantes só comem verdura. Pra
não engordar há quem coma somente peixe. As baleias só comem peixe.
Leis da Dieta. [ Ed wa rd Alo ys iu s M u rph y ]
Avaliação da Situação pelo Perito: E conversa para Boi Dormir.

Elaborado por:

Analisado por:

Professor :

Marcelo Gandra Falcone

Alessandra Aparecida Vieira

Marcelo Gandra Falcone

QUANDO IMPRESSO CONSIDERAR PIRATARIA - CÓPIA NÃO AUTORIZADA
UNINOVE

Rev. B

Engenharia de Avaliações e Perícias
Manutenção Predial e Avaliação de Máquinas
e Equipamentos

16/07/2011
Folha 331/424

4.2 NOME E SÍMBOLO (COMO ESCREVER AS UNIDADES SI)

Elaborado por:

Analisado por:

Professor :

Marcelo Gandra Falcone

Alessandra Aparecida Vieira

Marcelo Gandra Falcone

QUANDO IMPRESSO CONSIDERAR PIRATARIA - CÓPIA NÃO AUTORIZADA
UNINOVE

Rev. B

Engenharia de Avaliações e Perícias
Manutenção Predial e Avaliação de Máquinas
e Equipamentos

16/07/2011
Folha 332/424

Elaborado por:

Analisado por:

Professor :

Marcelo Gandra Falcone

Alessandra Aparecida Vieira

Marcelo Gandra Falcone

QUANDO IMPRESSO CONSIDERAR PIRATARIA - CÓPIA NÃO AUTORIZADA
UNINOVE

Rev. B

Engenharia de Avaliações e Perícias
Manutenção Predial e Avaliação de Máquinas
e Equipamentos

16/07/2011
Folha 333/424

5. TÓPICOS DE MATEMÁTICA FINANCEIRA

5.1 A NECESSIDADE PRÁTICA NA AVALIAÇÃO
As avaliações de imóveis devem ser feitas sempre a partir de valores
unitários a vista (R$/m2, R$/ha, R$/alq., etc.). Na pesquisa de uma amostra
podem surgir fatos de mercado onde os valores são negociados a prazos.

5.2 A AVALIAÇÃO DE BENS FINANCIADOS
A visualização de um problema envolvendo receitas e despesas que
ocorrem em instantes diferentes de tempo é bastante facilitada por uma
representação gráfica simples chamada de diagrama de fluxo de caixa.

Elaborado por:

Analisado por:

Professor :

Marcelo Gandra Falcone

Alessandra Aparecida Vieira

Marcelo Gandra Falcone

QUANDO IMPRESSO CONSIDERAR PIRATARIA - CÓPIA NÃO AUTORIZADA
UNINOVE

Rev. B

Engenharia de Avaliações e Perícias
Manutenção Predial e Avaliação de Máquinas
e Equipamentos

16/07/2011
Folha 334/424

5.3 REGIMES DE CAPITALIZAÇÃO: CÁLCULO DO VALOR PRESENTE (P)
Relação entre P e F
A transformação de um valor presente em um montante no futuro e vice-versa
permite resolver problemas do tipo:
Qual valor P que deverá ser investido hoje a uma determinada taxa de juros
para se obter uma quantia F após certo tempo?
Investindo hoje uma quantia P a uma taxa i, qual a quantia F obtida após n
períodos?
As expressões matemáticas para resolução do problema são:

Exemplo: Consegui um empréstimo de R$ 10.000,00 em um banco que cobra
5% ao mês de taxa de juros. Quanto deverei pagar se o prazo de empréstimo é
de 6 meses?

P = R$ 10.000,00
i = 5% ou 0,05
n = 6 meses
6

F= R$ 10.000,00 (1+0,05) = R$ 13.400,96
Exemplo: Comprei um imóvel e devo dar um balão daqui a 4 meses de R$
20.000,00. Supondo uma taxa de mercado igual a 3% ao mês. Qual
deveria ser o desconto para pagamento à vista?

Elaborado por:

Analisado por:

Professor :

Marcelo Gandra Falcone

Alessandra Aparecida Vieira

Marcelo Gandra Falcone

QUANDO IMPRESSO CONSIDERAR PIRATARIA - CÓPIA NÃO AUTORIZADA
UNINOVE

Rev. B

Engenharia de Avaliações e Perícias
Manutenção Predial e Avaliação de Máquinas
e Equipamentos

16/07/2011
Folha 335/424

Exemplo: Comprei uma casa cujo preço a vista é de R$ 100.000,00. Supondo
ter dado uma entrada de R$ 40.000,00 e proposto pagar o restante em
24 meses, qual será o valor da prestação se a taxa mensal é de 5% ao
mês?

Exemplo: Num trabalho de avaliação, deparamos com um imóvel à
venda nas seguintes condições: Entrada de R$ 25.000,00 e saldo de 15
prestações mensais fixas de R$ 1.000,00. Supondo a taxa mensal de 4% ao
mês, qual o valor a vista?

Elaborado por:

Analisado por:

Professor :

Marcelo Gandra Falcone

Alessandra Aparecida Vieira

Marcelo Gandra Falcone

QUANDO IMPRESSO CONSIDERAR PIRATARIA - CÓPIA NÃO AUTORIZADA
UNINOVE

Rev. B

Engenharia de Avaliações e Perícias
Manutenção Predial e Avaliação de Máquinas
e Equipamentos

16/07/2011
Folha 336/424

6. CRITÉRIOS PARA DEPRECIAÇÃO FÍSICA DE BENS

6.1 A NECESSIDADE PRÁTICA NA AVALIAÇÃO
DEPRECIAÇÃO: Perda de valor de um bem, devido a modificações em seu
estado ou qualidade, ocasionadas por decrepitude, deterioração, mutilação ou
obsoletismo. A Instrução Normativa SRF 162/98 determina prazos de
depreciação maquinas e equipamentos. De acordo com Decreto Federal
3000/1999 (RIR) em seus Artigos 311 e 346, para bens usados a taxa de
depreciação será fixada tendo em vista o maior dos seguintes prazos:
1. Metade da vida útil admissível para o bem novo ou
2. Restante da vida útil, considerada em relação à primeira instalação.
Exemplo: Equipamento Novo = 20 anos, portanto máxima vida útil para um
equipamento usado será de 10 anos caso ele tenha mais de 10 anos de
instalado.
6.2 MÉTODOS USUAIS PARA DEPRECIAÇÃO
- MÉTODO DA LINHA RETA (MLR)
Consiste em considerar a depreciação como função linear da idade do BEM,
com variação uniforme ao longo da vida útil. É o método mais rápido e mais
simples, além de ser permitido pela legislação do imposto de renda.

- MÉTODO DA PARÁBOLA OU DE KUENTZLE
É o método pelo qual a depreciação se distribui ao longo da vida útil do BEM,
segundo as ordenadas de uma parábola, onde:

- MÉTODO DE ROSS
Este método tem emprego internacional generalizado. Consiste num meio
termo entre dois processos anteriores e sua equação algébrica é dada
por:

Elaborado por:

Analisado por:

Professor :

Marcelo Gandra Falcone

Alessandra Aparecida Vieira

Marcelo Gandra Falcone

QUANDO IMPRESSO CONSIDERAR PIRATARIA - CÓPIA NÃO AUTORIZADA
UNINOVE

Rev. B

Engenharia de Avaliações e Perícias
Manutenção Predial e Avaliação de Máquinas
e Equipamentos

16/07/2011
Folha 337/424

6.3 MÉTODO DE ROSS - HEIDECKE
Até agora foi visto que somente entraram em consideração, como fatores de
depreciação, a vida útil e a idade do bem que se estuda, isto é, com os
métodos retro expostos, calcula-se a depreciação resultante de uso normal.
Para tanto usualmente considera-se a seguinte tabela para o cálculo do valor
residual de imóveis:

Heidecke, introduziu o conceito de estado de conservação e aconselha as
depreciações calculadas por quaisquer das fórmulas antes mencionadas em
porcentagem, que ponderem o estado de manutenção e conservação, isto é, o
critério de Heidecke representa castigos por má conservação e, considera
como princípios básicos os seguintes:
− a depreciação é perda de valor que não pode ser recuperada com gastos de
manutenção;
− as reparações podem apenas dilatar a durabilidade;
− um bem regularmente conservado deprecia-se de modo regular, enquanto
que um bem mal conservado deprecia-se mais rapidamente.

Elaborado por:

Analisado por:

Professor :

Marcelo Gandra Falcone

Alessandra Aparecida Vieira

Marcelo Gandra Falcone

QUANDO IMPRESSO CONSIDERAR PIRATARIA - CÓPIA NÃO AUTORIZADA
UNINOVE

Rev. B

Engenharia de Avaliações e Perícias
Manutenção Predial e Avaliação de Máquinas
e Equipamentos

16/07/2011
Folha 338/424

Tabela de Ross-Heidecke : Combina o estado de conservação do Bem com
a idade em percentual da vida útil provável, onde K encontra-se na
tabela apresentada abaixo

Elaborado por:

Analisado por:

Professor :

Marcelo Gandra Falcone

Alessandra Aparecida Vieira

Marcelo Gandra Falcone

QUANDO IMPRESSO CONSIDERAR PIRATARIA - CÓPIA NÃO AUTORIZADA
UNINOVE

Rev. B

Engenharia de Avaliações e Perícias
Manutenção Predial e Avaliação de Máquinas
e Equipamentos

16/07/2011
Folha 339/424

Exemplo: Uma maquina com previsão de vida útil igual a 60 anos, está com 18
anos de uso e em estado regular de conservação e manutenção. Considerando
o valor unitário de uma máquina idêntica nova é igual a R$ 6.000.000,00 ,
calcular seu valor depreciado devido a idade e conservação.

Idade em % de vida útil =>
Buscando na tabela de depreciação na página anterior da apostila, tem-se:
Estado c (regular) e 30% de idade em % de vida útil

K = 21,5

Valor Unitário Depreciado = R$ 6.000.000,00 x 0,785 = R$ 4.710.000,00

Elaborado por:

Analisado por:

Professor :

Marcelo Gandra Falcone

Alessandra Aparecida Vieira

Marcelo Gandra Falcone

QUANDO IMPRESSO CONSIDERAR PIRATARIA - CÓPIA NÃO AUTORIZADA
UNINOVE

Engenharia de Avaliações e Perícias
Manutenção Predial e Avaliação de Máquinas
e Equipamentos

7.
METODOLOGIAS
EQUIPAMENTOS

Rev. B
16/07/2011

PARA

AVALIAÇÃO

DE

Folha 340/424

MÁQUINAS

E

A avaliação de bens de produção em geral, representados seja por
máquinas, veículos, equipamentos, instalações industriais são atividades
complexas.
A complexidade no campo da avaliação e valoração industrial, como tal
compreendida a valoração de uma simples máquina operatriz, até a avaliação
e valoração de uma usina siderúrgica, exige por parte do avaliador uma soma
de conhecimentos profissionais.
A valoração e avaliação de uma máquina, de uma instalação industrial ou de
uma indústria integrada ou não, não deve ser considerada como a simples
somatória de valores atribuídos aos componentes físicos ou tangíveis, mas sim
essa mesma somatória acrescida ou diminuída de valores correspondentes à
parte intangível representada por marcas e patentes, tecnologia atualizada ou
obsoleta e superada, e neste caso isto se constituirá num fator negativo ou
depreciativo.
7.1 ETAPAS DA AVALIAÇÃO
1° - Identificação dos bens ou coisas a serem avaliados.
2º - Levantamento de campo, onde devem ser conferidos os dados
obtidos nos levantamentos preliminares de operação e produção.
Deve ser verificado o estado de conservação e manutenção, bem como o
estado operacional. Um relatório ilustrado com fotografias torna-se muito
mais útil, eis que permite a qualquer momento, e em qualquer lugar,
visualizar detalhes que ás vezes já não existem mais ou que foram
modificados após a avaliação.
A tabela abaixo ajuda na coleta de dados para especificação:

Elaborado por:

Analisado por:

Professor :

Marcelo Gandra Falcone

Alessandra Aparecida Vieira

Marcelo Gandra Falcone

QUANDO IMPRESSO CONSIDERAR PIRATARIA - CÓPIA NÃO AUTORIZADA
UNINOVE

Rev. B

Engenharia de Avaliações e Perícias
Manutenção Predial e Avaliação de Máquinas
e Equipamentos

16/07/2011
Folha 341/424

3º Coleta de informações
Para se estabelecer o valor de uma coisa ou bem, é necessário haver uma
base para, a partir da mesma, seja por comparação, extrapolação, dedução ou
outro método, se chegar ao valor do mesmo. Para a valoração de máquinas,
equipamentos, instalações industriais, é esse o procedimento a adotar. O valor
procurado, tal como anteriormente definido, deve assentar em bases realistas,
comprováveis, pois em última análise, o avaliador responde pelas opiniões e
pareceres emitidos, devendo estar em condições de poder a qualquer
momento, demonstrar o acerto de seus cálculos. Para tanto, o
pesquisador deve proceder a uma pesquisa de valores atualizados para
os bens avaliandos.
As fontes de informações são as mais variadas e diversificadas sendo
comumente as seguintes:
Fabricantes;
Representantes;
Distribuidores;
Agentes autorizados;
Revendedores;
Comércio de novos e usados.
Quanto a equipamentos e instalações de fabricação especial sob
encomenda, tais como reatores, colunas de destilação, permutadores
de calor, tanques, máquinas especiais, etc., o procedimento será o de
orçar os materiais e a mão de obra utilizados em todas as etapas de
fabricação dos mesmos, incluindo os impostos devidos.

7.2 CRITÉRIOS DE DEPRECIAÇÃO
A princípio, todos os bens possuem durabilidade limitada. Sua melhor utilização
ou eficácia ocorre enquanto novos, e, com a utilização, vão gradualmente
perdendo características materiais, seja por desgaste, seja por decadência
física dos seus componentes, até chegar ao ponto da utilização ser inviável
economicamente. Este período denominamos de vida útil e é quantificado
usualmente em anos.
No tocante à importância da depreciação, a Legislação Brasileira (Lei 9.249/95
– art. 13) prevê que as empresas podem deduzir para efeito de determinação
do lucro real e da base de cálculo da Contribuição Social sobre o lucro líquido,
as despesas de depreciação e amortização de bens móveis ou imóveis, desde
que estejam intrinsecamente relacionados com a produção ou comercialização
dos bens e serviços.
Os planejadores econômicos necessitam conhecer informações relativas à vida
útil provável do maquinário industrial, instrumentos, equipamentos, instalações
e edificações, para determinar e dimensionar o projeto de produção e a
Elaborado por:

Analisado por:

Professor :

Marcelo Gandra Falcone

Alessandra Aparecida Vieira

Marcelo Gandra Falcone

QUANDO IMPRESSO CONSIDERAR PIRATARIA - CÓPIA NÃO AUTORIZADA
UNINOVE

Rev. B

Engenharia de Avaliações e Perícias
Manutenção Predial e Avaliação de Máquinas
e Equipamentos

16/07/2011
Folha 342/424

viabilidade econômica da planta industrial. Percebe-se a importância do
conhecimento a priori do comportamento provável da depreciação do capital
físico de produção no tempo.
Nos contratos de risco que as empresas seguradoras oferecem ao mercado,
em geral estão previstas indenizações limitadas ao valor dos bens à época do
sinistro. No caso dos automóveis, a importância segurada em geral está
limitada ao valor dos mesmos no momento da contratação do risco, portanto,
limitado ao valor, já considerando a depreciação dos mesmos, em comparação
com automóveis novos.
As máquinas e equipamentos individualmente se depreciam devido a
degradação física e ao obsoletismo o que na verdade, reflete a tendência
do mercado (nítida diferença entre um bem novo e usado). Quando se
analisa um processo em marcha a depreciação do ativo não é tão clara,
e somente através de uma avaliação econômica pode-se chegar ao valor real
do empreendimento. Convém lembrar que o valor das máquinas e
equipamentos são justificados em função do lucro gerado, o que está
intimamente relacionado com a administração do empreendimento.
Relativamente aos bens materiais que pertencem ao processo, e partindo
do
pressuposto que o projeto é adequado à finalidade, o principal
condicionante da maior ou menor depreciação é a gestão da manutenção, que
além de assegurar a disponibilidade de máquinas, equipamentos e instalações
nos níveis exigidos pelo mercado, garante o grau de confiabilidade individual
do bem. Diversos critérios de depreciação já foram apresentados no caso de
imóveis, os quais também podem ser utilizados para máquinas e
equipamentos, dependendo do caso. Há outros métodos consagrados como o
desenvolvido pelo Eng. Hélio Roberto de Caires em seu livro Novos
Tratamentos Matemáticos em Temas de Engenharia de Avaliação. O seu
método leva em consideração além da vida útil e do tempo de operação, um
coeficiente de manutenção e um coeficiente de trabalho.
Outro método é o da Criticidade (Eng° Luis Barbosa) que leva em conta os
custos despendidos em manutenção dos equipamentos. Todos os métodos de
depreciação acima apresentados baseiam-se na vida útil dos elementos. Um
balizador para estes valores pode ser obtido junto aos fabricantes, ou em livros
especializados. Para elementos que ultrapassaram a vida útil projetada, porém
ainda se encontram em utilização, convenciona-se um fator de penalização do
valor residual.

Elaborado por:

Analisado por:

Professor :

Marcelo Gandra Falcone

Alessandra Aparecida Vieira

Marcelo Gandra Falcone

QUANDO IMPRESSO CONSIDERAR PIRATARIA - CÓPIA NÃO AUTORIZADA
UNINOVE

Rev. B

Engenharia de Avaliações e Perícias
Manutenção Predial e Avaliação de Máquinas
e Equipamentos

16/07/2011
Folha 343/424

7.2 AVALIAÇÃO PELO MÉTODO COMPARATIVO DE MERCADO
O método comparativo, sendo de conhecimento geral, é a viga mestra
das avaliações de bens. Detalhar sua metodologia fugiria aos objetivos
imediatos deste curso. Nestas condições a título de melhor aproveitamento
didático, vamos apresentar uma seqüência prática e objetiva de procedimentos,
os quais orientam a formação de uma amostra que permita a avaliação
coerente de uma ou mais unidades de máquinas, veículos, tratores, etc, cujo
mercado seja definido. No exemplo a seguir, pretende-se apresentar uma
maneira de adoção de variáveis e a forma de trabalho. Para efeito de
comparação de amostras deste caso estamos utilizando coeficientes lineares
de equivalência.

EXEMPLO ILUSTRATIVO 1

Elaborado por:

Analisado por:

Professor :

Marcelo Gandra Falcone

Alessandra Aparecida Vieira

Marcelo Gandra Falcone

QUANDO IMPRESSO CONSIDERAR PIRATARIA - CÓPIA NÃO AUTORIZADA
UNINOVE

Rev. B

Engenharia de Avaliações e Perícias
Manutenção Predial e Avaliação de Máquinas
e Equipamentos

16/07/2011
Folha 344/424

EXEMPLO ILUSTRATIVO 2
Supondo que deva ser avaliado um caminhão de transporte rodoviário da
marca "Estrela", com carroceria de madeira, ano 1996, modelo E1316.
1º Passo: Fatores de Relevância
Devem ser estabelecidos quais são os fatores de relevância a serem
ponderados, com os repetíveis níveis percentuais de valor relativo. Este
percentual corresponderá a pesos e tem correlação de coerência entre o
estado físico e os valores propostos ou os praticados no mercado.
Neste exemplo hipotético foram estabelecidos os seguintes níveis percentuais
para os componentes listados na tabela seguinte:

2º Passo: Coleta de Dados
Devem ser coletados os dados junto ao mercado (pesquisa de mercado
atualizada) para posterior formação da amostra. Deve ser preenchida uma
planilha que auxiliará na apropriação dos dados.
Para cada dado de pesquisa deverá ser preenchida uma planilha.

Elaborado por:

Analisado por:

Professor :

Marcelo Gandra Falcone

Alessandra Aparecida Vieira

Marcelo Gandra Falcone

QUANDO IMPRESSO CONSIDERAR PIRATARIA - CÓPIA NÃO AUTORIZADA
UNINOVE

Rev. B

Engenharia de Avaliações e Perícias
Manutenção Predial e Avaliação de Máquinas
e Equipamentos

16/07/2011
Folha 345/424

Elaborado por:

Analisado por:

Professor :

Marcelo Gandra Falcone

Alessandra Aparecida Vieira

Marcelo Gandra Falcone

QUANDO IMPRESSO CONSIDERAR PIRATARIA - CÓPIA NÃO AUTORIZADA
UNINOVE

Rev. B

Engenharia de Avaliações e Perícias
Manutenção Predial e Avaliação de Máquinas
e Equipamentos

16/07/2011
Folha 346/424

Elaborado por:

Analisado por:

Professor :

Marcelo Gandra Falcone

Alessandra Aparecida Vieira

Marcelo Gandra Falcone

QUANDO IMPRESSO CONSIDERAR PIRATARIA - CÓPIA NÃO AUTORIZADA
UNINOVE

Rev. B

Engenharia de Avaliações e Perícias
Manutenção Predial e Avaliação de Máquinas
e Equipamentos

16/07/2011
Folha 347/424

EXEMPLO ILUSTRATIVO 3
Neste exemplo, procurou-se demonstrar a capacidade de aplicação do método,
através da hipótese de similaridade da amostra. Partiu-se de um compressor e
através de ofertas anunciadas de compressores da mesma marca e do preço
referente a equipamentos novos com especificações semelhantes (visto que as
ofertas anunciadas correspondem a modelos não mais fabricados), construiuse um modelo de regressão. Os dados se referem a fevereiro de 2006.
Objeto avaliando: Compressor de ar estacionário ATLAS-COPCO, modelo GA
22-100 com capacidade de 123 m3/h a 7,5 bar de pressão de saída, ano de
fabricação 1995. (11 ANOS)
Valor de novo: R$ 27.000,00
É importante que o valor de x do objeto avaliando esteja contido no intervalo da
amostra, para não se incorrer em extrapolação, ao invés de interpolação. Um
motivo pelo qual que isto não deva feito, é o fato de que o valor de um
elemento que esteja fora do intervalo da amostra pode mudar o formato da
curva de depreciação, tornando o resultado obtido não confiável.

Caso a marca e o modelo do equipamento coincidam, isto é, os objetos só
diferem pelo ano de fabricação, não se faz necessário obter o valor de D. Em
seu lugar, é utilizado o valor da oferta de mercado, ou seja, obter-se-á um
gráfico de VA em função de x, diretamente como no exemplo 2.

Elaborado por:

Analisado por:

Professor :

Marcelo Gandra Falcone

Alessandra Aparecida Vieira

Marcelo Gandra Falcone

QUANDO IMPRESSO CONSIDERAR PIRATARIA - CÓPIA NÃO AUTORIZADA
UNINOVE

Rev. B

Engenharia de Avaliações e Perícias
Manutenção Predial e Avaliação de Máquinas
e Equipamentos

16/07/2011

Depreciação x tempo

Folha 348/424

y = -0,1653Ln(x) + 0,7351
2
R = 0,9386

Depreciação

0,8
0,7
0,6
0,5
0,4

Log.
Linear

0,3
0,2
0,1
0
1

4

7 10 13 16 19 22 25 28 31 34 37 40
anos

y = -0,0119x + 0,5439
2
R = 0,6647

Figura 2 – Curva de regressão para os compressores dados (calculada no excel)

Após a aplicação do modelo de regressão foi obtida a seguinte equação:
D = y = -0,1653Ln(x) + 0,7351 com R² = 0,9386, o que implica em:
D (11) = 0,419 e

VA= 0,419 x 27000 = R$ 11.313,00.

Ao se concentrar a atenção no ponto correspondente ao compressor modelo
XA80 DE 18 ANOS (1988) é um ponto fora da curva e provocou uma
diminuição excessiva no valor de D, ou seja, este valor é menor do que deveria
ser. Para que este problema seja contornado, pode ser verificado o preço do
compressor novo correlato imediatamente abaixo na escala de capacidade,
dando assim condições de se estabelecer uma relação de proporcionalidade
entre os compressores novos de modo a corrigir esta distorção.

Elaborado por:

Analisado por:

Professor :

Marcelo Gandra Falcone

Alessandra Aparecida Vieira

Marcelo Gandra Falcone

QUANDO IMPRESSO CONSIDERAR PIRATARIA - CÓPIA NÃO AUTORIZADA
UNINOVE

Rev. B

Engenharia de Avaliações e Perícias
Manutenção Predial e Avaliação de Máquinas
e Equipamentos

16/07/2011

7.3 AVALIAÇÃO PELO MÉTODO COMPARATIVO DE
CONSIDERANDO-SE O ESTADO FÍSICO (CONSERVAÇÃO)

Folha 349/424

MERCADO

Um pressuposto que foi feito pelo modelo é de que a amostra seja similar ao
objeto avaliando de modo que o resultado seja um valor de avaliação mais
fidedigno. No entanto, o procedimento de restringir elementos da amostra pode
vir a esgotar os dados disponíveis, pois tais elementos possuem diferentes
estados de conservação, ou seja, na prática eles são heterogêneos entre si. O
que deve ser averiguado é se essa diferença é desprezível ou não. Caso seja
considerável ou se queira um melhor nível de precisão, o modelo pode ser
conjugado com o método Hélio de Caíres através da função que considera
fatores de manutenção e de trabalho, de sorte que a amostra seja mais bem
aproveitada. Aplica-se assim o método para o segundo caso com valores de
coeficientes de manutenção e trabalho arbitrados com referência nos dados
que se possuía sobre cada elemento da amostra.
Com relação ao uso dos coeficientes de manutenção e de trabalho, o grande
problema é o de se fixar uma referência. Entretanto a importância daqueles no
modelo é apenas relativa dado que todos os elementos (os da amostra e o
avaliando) passarão por esse processo de correção e para que isso ocorra da
melhor forma possível, às vezes é necessário que se tenha um maior grau de
liberdade na atribuição dos valores de CM e CT.

Elaborado por:

Analisado por:

Professor :

Marcelo Gandra Falcone

Alessandra Aparecida Vieira

Marcelo Gandra Falcone

QUANDO IMPRESSO CONSIDERAR PIRATARIA - CÓPIA NÃO AUTORIZADA
UNINOVE

Rev. B

Engenharia de Avaliações e Perícias
Manutenção Predial e Avaliação de Máquinas
e Equipamentos

16/07/2011
Folha 350/424

Elaborado por:

Analisado por:

Professor :

Marcelo Gandra Falcone

Alessandra Aparecida Vieira

Marcelo Gandra Falcone

QUANDO IMPRESSO CONSIDERAR PIRATARIA - CÓPIA NÃO AUTORIZADA
UNINOVE

Rev. B

Engenharia de Avaliações e Perícias
Manutenção Predial e Avaliação de Máquinas
e Equipamentos

16/07/2011
Folha 351/424

EXEMPLO ILUSTRATIVO 4
Neste exemplo estamos aproveitando a pesquisa do exemplo 3. Reiterando os
dados se referem a fevereiro de 2006.
Objeto avaliando: Compressor de ar estacionário ATLAS-COPCO, modelo GA
22-100 com capacidade de 123 m3/h a 7,5 bar de pressão de saída, ano de
fabricação 1995. (11 ANOS)
Valor de novo: R$ 27.000,00

Elaborado por:

Analisado por:

Professor :

Marcelo Gandra Falcone

Alessandra Aparecida Vieira

Marcelo Gandra Falcone

QUANDO IMPRESSO CONSIDERAR PIRATARIA - CÓPIA NÃO AUTORIZADA
UNINOVE

Rev. B

Engenharia de Avaliações e Perícias
Manutenção Predial e Avaliação de Máquinas
e Equipamentos

16/07/2011
Folha 352/424

Aqui, os coeficientes foram aplicados de acordo com a descrição de cada
compressor obtida na pesquisa e, nos casos em que foi possível, com as fotos
disponíveis. Para objeto de avaliação foram considerados normais os
coeficientes de trabalho e manutenção. É certo que este é um fator muito
influente na qualidade do resultado, sendo assim, melhor será que se obtenha
o máximo de informações possíveis a respeito de cada elemento.

Após a aplicação o modelo de regressão, obtem-se a seguinte equação:
D = 0,865-0,195*ln(x) com R² = 0,906, o que implica que:
D (11) = 0,397 e VA = 0,397 x 27000 = R$ 10.719,00.
Obs: No exemplo 3 sem o ajuste CM/CT os valores foram : D (11) = 0,419 e
VA= 0,419 x 27000 = R$ 11.313,00.
Dessa forma, chegou-se ao valor de avaliação através da equação obtida com
o modelo de regressão, ajustando-se a idade dos bens pelo método Hélio de
Caires. A diferença entre o valor ajustado e o valor sem ajuste foi de
aproximadamente 5% para mais em favor do valor sem ajuste. Tal diferença
tende a cair à medida que se aumenta o número de elementos e a
homogeneidade da amostra.
Utilizando-se o método Hélio de Caires, através do seguinte procedimento:
Da tabela 3, aplicam-se coeficientes de manutenção e trabalho normais o que
pela tabela 4, resulta num valor de f(CM,CT) = 1,00. Em seguida, multiplica-se
f(CM,CT) por t/T, o que resultado em 0,73 ( para t=11 e vida útil de 15 anos) e
0,55 (para t=11 e vida útil de 20 anos), o que através da tabela 5, implica em:
0,23454 < Dc < 0,38598. Se for considerado um valor residual de 10 % o
parâmetro fica: D = 0,1 + 0,9 (Dc) o que implica em 0,311086 < Dc<0,447382 e
R$ 8.399,00 < VA < R$ 12.079,00. O que representa uma diferença de 44 %.

Elaborado por:

Analisado por:

Professor :

Marcelo Gandra Falcone

Alessandra Aparecida Vieira

Marcelo Gandra Falcone

QUANDO IMPRESSO CONSIDERAR PIRATARIA - CÓPIA NÃO AUTORIZADA
UNINOVE

Rev. B

Engenharia de Avaliações e Perícias
Manutenção Predial e Avaliação de Máquinas
e Equipamentos

16/07/2011
Folha 353/424

7.4 AVALIAÇÃO PELO MÉTODO DO CUSTO DE REEDIÇÃO
Quando não há elementos de comparação no mercado sugere-se a
determinação do valor de novo da máquina ou equipamento e em seguida
utiliza-se a depreciação através do método de Ross Heidecke. O custo de
reedição pode ser sintetizado como sendo a somatória do preço de aquisição
da máquina ou equipamento com todas as implicações de impostos e taxas,
custos de transporte até o local da obra, com o custo dos materiais para
instalação, respectiva mão de obra, inclusive naquilo a que se refere a
acabamentos especiais ou normais, tais como pintura, isolação térmica, etc.
Exemplo
EQUIPAMENTO: Regulador de tensão, 530 kVA, tipo ERT1-10L, nº 12.223.
Fabricação Equacional.
Prezados Senhores,
Em atenção a solicitação de V.Sas., apresentamos abaixo alguns comentários
bem como a declaração de prolongamento da vida útil do bem em referencia.
1)
Pela Instrução Normativa SRF 162/98 o prazo de depreciação para este
tipo de bem novo é de 10 anos.
2)
Pela tabela de vida útil do IBAPE, Equipamentos Elétricos, Conversor, a
Vida Útil estimada é de 25 anos até a total obsolescência.
3)
Valor do novo: R$ 150.000,00. Data do fornecimento original: Dez/1995.
Tempo de uso 15 anos.
4)

Valor do reparo: R$ 26.700,00. Data do reparo: Ago/2010

5)
Por tratar-se de equipamento especial sob encomenda, não há
elementos de comparação no mercado, portanto estamos sugerindo a
determinação do valor de novo da máquina ou equipamento e em seguida
utilizando-se a depreciação através do método de Ross Heidecke.
Idade em % de vida útil => 18/25=0,72 -> 72%
Buscando na tabela de depreciação na página 340 da apostila, tem-se:
Estado B (Novo/Regular -> Acabou de ser reformado) e 72% de idade em % de
vida útil K = 61,9
Valor Unitário Depreciado = R$ 150.000,00 x 0,619 = R$ 92.850,00
Elaborado por:

Analisado por:

Professor :

Marcelo Gandra Falcone

Alessandra Aparecida Vieira

Marcelo Gandra Falcone

QUANDO IMPRESSO CONSIDERAR PIRATARIA - CÓPIA NÃO AUTORIZADA
UNINOVE

Rev. B

Engenharia de Avaliações e Perícias
Manutenção Predial e Avaliação de Máquinas
e Equipamentos

16/07/2011
Folha 354/424

6)
De acordo com Decreto Federal 3000/1999 (RIR) em seus Artigos 311 e
346, para bens usados a taxa de depreciação será fixada tendo em vista o
maior dos seguintes prazos:
1.
Metade da vida útil admissível para o bem novo ou (5 anos)
2.
Restante da vida útil, considerada em relação à primeira instalação. (5
Anos)
De posse de tais informações e levando em consideração a interferência de
reforma (manutenção corretiva) do equipamento dentro de parâmetros
previstos em projeto:
“Declaramos para os devidos fins que após a realização dos serviços descritos
em nossa proposta DVS-13.863/10, aprovados através do Pedido de Compra
65.839, o equipamento em referencia tem seu valor atribuído em R$ 92.500,00
levando em consideração custos indiretos de impostos, transporte e instalação
e terá sua vida útil prolongada por até mais 5 anos.”

Elaborado por:

Analisado por:

Professor :

Marcelo Gandra Falcone

Alessandra Aparecida Vieira

Marcelo Gandra Falcone

QUANDO IMPRESSO CONSIDERAR PIRATARIA - CÓPIA NÃO AUTORIZADA
UNINOVE

Rev. B

Engenharia de Avaliações e Perícias
Manutenção Predial e Avaliação de Máquinas
e Equipamentos

16/07/2011
Folha 355/424

8. AUTOS DE AVALIAÇÃO

8.1 AUTO OU LAUDO? CONCEITUAÇÃO E CARACTERÍSTICAS
Conforme visto no item 1, laudo é o resultado técnico de uma avaliação, onde
são apresentados todos os elementos esclarecedores e as suas conclusões,
emitido por um profissional capacitado e legalmente habilitado sobre assunto
de sua especialidade. Auto de avaliação pode ser definido como um relatório
circunstanciado opinativo de valor de um bem.
8.2 MODELO DE AUTO DE AVALIAÇÃO
Tomamos a liberdade de apresentar o presente modelo, elaborado por Antonio
Marcos Pacheco – assojepar@onda.com.br. , retirado da apostila anexa.

Elaborado por:

Analisado por:

Professor :

Marcelo Gandra Falcone

Alessandra Aparecida Vieira

Marcelo Gandra Falcone

QUANDO IMPRESSO CONSIDERAR PIRATARIA - CÓPIA NÃO AUTORIZADA
UNINOVE

Rev. B

Engenharia de Avaliações e Perícias
Manutenção Predial e Avaliação de Máquinas
e Equipamentos

16/07/2011
Folha 356/424

8.3 REQUISITOS ESSENCIAIS DO AUTO DE AVALIAÇÃO
Ter como referência os itens 7.1 da Segunda parte da apostila.
8.4 REQUISITOS ACESSÓRIOS DO AUTO DE AVALIAÇÃO
Ter como referência os itens 7.1 da Segunda parte da apostila.
8.5 ANEXAÇÃO FOTOGRÁFICA
Ter como referência os itens7.1 da Segunda parte da apostila..
8.6 NOÇÕES GERAIS DE CONTRA-RAZÕES DAS IMPUGNAÇÕES AOS
AUTOS DE AVALIAÇÃO
Impugnações são freqüentes e de todas as espécies. Ao avaliador resta
a defesa de seu trabalho. A melhor forma é fundamentar e comprovar todos
os dados e cálculos apresentados, conforme o roteiro indicado para laudos no
item 3 da presente apostila. Lembrar o Princípio da Transparência: O laudo ou
parecer avaliatório de um bem deve conter a informação necessária e
suficiente para sua fácil compreensão e detalhar as hipóteses e
documentações utilizadas.

Elaborado por:

Analisado por:

Professor :

Marcelo Gandra Falcone

Alessandra Aparecida Vieira

Marcelo Gandra Falcone

QUANDO IMPRESSO CONSIDERAR PIRATARIA - CÓPIA NÃO AUTORIZADA
UNINOVE

Rev. B

Engenharia de Avaliações e Perícias
Manutenção Predial e Avaliação de Máquinas
e Equipamentos

16/07/2011
Folha 357/424

Referências bibliográficas
Na elaboração da presente apostila foram utilizados e copiados textos, gráficos
e conceitos dos seguintes livros, apostilas e publicações:
MANUAL DO CURSO INTRODUTÓRIO NOÇÕES BÁSICAS DE AVALIAÇÃO
DE BENS, PEDRO AUGUSTO KRUK, KRUK Consultoria, Avaliações e
Perícias do Patrimônio Ltda, Curitiba Paraná, 2.007
NORMAS BRASILEIRAS DE AVALIAÇÃO DA ABNT
INSTRUÇÕES TECNICAS DO CORPO DE BOMBEIROS DA POLICIA
MILITAR DO ESTADO DE SÃO PAULO
PORTARIA 124 DO MINISTÉRIO DE ESPORTES
NORMA DE AVALIAÇÃO DE BENS DO IBAPE SP - PROCEDIMENTOS
GERAIS:2005
NORMA DE INSPEÇÔES PREDIAIS PUBLICAÇÃO IBAPE SP – AVALIAÇÃO O QUE É E COMO CONTRATAR: 2007
CADERNO BRASILEIRO DE AVALIAÇÕES E PERÍCIAS. DIVERSOS
AUTORES. AVALIEN EDITORA
IBAPE: AVALIAÇÕES PARA GARANTIAS. EDITORA PINI.
EQUIPE ATLAS, “MANUAIS DE LEGISLAÇÃO, SEGURANÇA E MEDICINA
DO TRABALHO”. Edit. Atlas, 62ª Edição, São Paulo, 2008, NR7, NR9, NR10,
NR13, NR17, NR 20, NR23
BRAGA JR, Antonio Erlindo, “DISSERTAÇÃO DE MESTRADO:
FERRAMENTAS PARA O PROJETO ERGONÔMICO DE PRODUTOS :
ANÁLISE E SELEÇÃO PARA O USO”, Universidade Federal de Santa
Catarina, Florianópolis, Março de 1996, Santa Catarina, Brasil, CAPITULO II.
URL: http://www.eps.ufsc.br/disserta96/erlindo/indice/index.htm em 08/11/2008
BUSSAB, W. O.; MORENTTIN, P. A.: ESTATÍSTICA BÁSICA. ATUAL
EDITORA.
COPESCO JR, Ari Vladimir, Artigo, “AS EMPRESAS NÃO ACORDARAM
PARA O PROBLEMA DE ERGONOMIA”, discutido no Seminário sobre
Segurança do Trabalho, que foi realizado pelo Ceise Br – Centro Nacional das
Indústrias do Setor Sucroalcooleiro, em parceria com a Wiabiliza Recursos
Humanos em 04/06/2008.
URL: http://www.ceiseciesp.com.br/noticias.php?id=1163 em 21/10/2008.
Elaborado por:

Analisado por:

Professor :

Marcelo Gandra Falcone

Alessandra Aparecida Vieira

Marcelo Gandra Falcone

QUANDO IMPRESSO CONSIDERAR PIRATARIA - CÓPIA NÃO AUTORIZADA
UNINOVE

Rev. B

Engenharia de Avaliações e Perícias
Manutenção Predial e Avaliação de Máquinas
e Equipamentos

16/07/2011
Folha 358/424

SANTOS, Carlos Maurício Duque dos, Artigo “Ergonomia, Qualidade e
Segurança do Trabalho: Estratégia Competitiva para Produtividade da
Empresa”,
Prof. M.Sc. Carlos Maurício Duque dos Santos , UNIPUniversidade Paulista, 2003
COUTO, Hudson de Araújo. In Ergonomia Aplicada ao Trabalho - A máquina
humana. Volume I, l998. GONÇALVES, Edwar Abreu. Manual de Segurança e
Saúde no Trabalho. Edit. LTR 2000.
PERITO, Sandra, Apostila, “Aplicando o conceito do universal design”, Instituto
Brasil Acessível, agosto de 2006
BURJATO, Ana Lúcia de Faria, Apostila “Engenharia e Segurança do Trabalho
Ergonomia – ano 2008” - UNINOVE – Curso de Engenharia de Segurança do
trabalho; Disciplina Ergonomia. Arqta. Ms. Ana Lúcia de Faria BurjatoSP , ano
2008
SILVA, FERNANDES, VARANDAS E CUETO, André Hemetério da Silva, Alan
Cortez de Lucena, Daniela Massano Fernandes, Glaucia Varandas, Maria
Izabel Artidiello Cueto, Apostila “ACESSIBILIDADE - MOBILIDADE
ACESSÍVEL NA CIDADE DE SÃO PAULO”, Publicação da Secretaria
Municipal da Pessoa com Deficiência e Mobilidade Reduzida (SMPED), São
Paulo, Sp, 2008. DOWNLOAD GRATUITO NO SITE DA PREFEITURA DE SP
SPIEGEL, M. R.: ESTATÍSTICA. EDITORA SCHAUM MCGRAW-HILL.
TOURINHO, L. C. P.: CADERNOS DE ESTATÍSTICA E ECONOMIA.
NÚMERO 1. PROBABILIDADES. EDITORA DAEP.
WONNACOTT, T. H.; WONNACOTT, R. J.: ESTATÍSTICA APLICADA À
ECONOMIA E ADMINISTRAÇÃO. LIVROS TÉCNICOS E CIENTÍFICOS
EDITORA S.A.
TÉCNICOS DE CONTRU-2, Manual “ORIENTAÇÃO TÉCNICA INFORMAÇÃO E DOCUMENTAÇÃO”; Prefeitura da Cidade de São Paulo,
Secretaria de Habitação , Departamento de Controle de Uso de Edificações
(Contru), janeiro de 2008
SITE Núcleo de Ergonomia e Antropometria - NEA. Missão. Definições.
Serviços.
URL:
http://www.cspd.com.br/nucleos.asp?act=listar&id_nucleo=3,
Dia
21/10/08

Elaborado por:

Analisado por:

Professor :

Marcelo Gandra Falcone

Alessandra Aparecida Vieira

Marcelo Gandra Falcone

QUANDO IMPRESSO CONSIDERAR PIRATARIA - CÓPIA NÃO AUTORIZADA
UNINOVE

Rev. B

Engenharia de Avaliações e Perícias
Manutenção Predial e Avaliação de Máquinas
e Equipamentos

16/07/2011
Folha 359/424

SITE: CLT - CONSOLIDAÇÃO DAS LEIS DO TRABALHO - DECRETO-LEI Nº
5.452,
DE
1º
DE
MAIO
DE
1943
URL:
https://www.planalto.gov.br/ccivil_03/decreto-lei/Del5452.htm em 11/10/2008
SITE: FEMA: Federal Emergency Management Agency (USA); URL:
http://www.fema.gov/
“Guidelines for availabiliy of outdoor toilet facilities” – American Restroom
Association; URL:http://americanrestroom.org/pr/policy/
SITE: Normas e Legislação: Secretaria Municipal da Pessoa com Deficiência e
Mobilidade Reduzida - .SP / secretarias / smped / acessibilidade
URL:http://portal.prefeitura.sp.gov.br/secretarias/deficiencia_mobilidade_reduzi
da/acessibilidade/0001 em 07/11/2008
SITE: Normas Oficiais ABNT; URL:http://www.abntnet.com.br/
SITE: Diário oficial do Município – Cidade de São Paulo
URL:http://diariooficial.imprensaoficial.com.br/nav_v4/index.asp?c=1, em
16/11/2008

SITE: Sesmet: Segurança do Trabalho – Yahoo;
URL:http://br.groups.yahoo.com./group/sesmet

SITE: Grupo espaço Sesmet; URL:http:// www.segurancatrabalho.eng.br

SITE: Forum Grupo CIPA;URL: http://www.cipanet.com.br/forum

SITE: Notas de aula do curso de engenharia produção da Universidade Federal
de Juiz de Fora – Profº Eduardo Breviglieri Pereira de Castro:
www.ep.ufjf.br/epd_ergonomia/desenho_universal.pdf

SITE: The center for universal design: http://www.design.ncsu.edu/cud/

Elaborado por:

Analisado por:

Professor :

Marcelo Gandra Falcone

Alessandra Aparecida Vieira

Marcelo Gandra Falcone

QUANDO IMPRESSO CONSIDERAR PIRATARIA - CÓPIA NÃO AUTORIZADA
UNINOVE

Rev. B

Engenharia de Avaliações e Perícias
Manutenção Predial e Avaliação de Máquinas
e Equipamentos

16/07/2011
Folha 360/424

Apêndice 1 - LEGISLAÇÃO PERTINENTE
1 – Código de Obras e Edificações
1.1 – Lei 11.228 de 26 de Junho de 1992.
Dispõe sobre as regras gerais e específicas a serem obedecidas no projeto,
licenciamento, execução, manutenção e utilização de obras e edificações, dentro dos
limites dos imóveis; revoga a Lei nº 8.266, de 20 de junho de 1975, com as alterações
adotadas por leis posteriores, e dá outras providências.
1.2 – Decreto Nº 32.329 de 23 de Setembro de 1992.
Regulamenta a Lei nº 11.228, de 25 de junho de 1992 - Código de Obras e Edificações,
e dá outras providências.

2 – Decretos que instituíram o Alvará de Funcionamento de local de
Reunião, Termo de Consulta e Revalidação do Alvará de
Funcionamento do Local de Reunião
2.1 – Decreto n° 24.636, de 24 de Setembro de 1987.
Altera e complementa dispositivos do Decreto nº 15.636/79 e revoga o Decreto n°
15.861/79.
2.2 – Decreto n° 41.531, de 20 de Dezembro de 2001.
Dispõe sobre o uso equivalente dos imóveis.
2.3 – Decreto n° 41.532, de 20 de Dezembro de 2001.
Dispõe sobre o Termo de Consulta, Auto de Licença de Funcionamento e do Alvará de
Funcionamento.
2.4 – Decreto n° 41.534, 20 de Dezembro de 2001.
Dispõe sobre a fiscalização em geral, estabelece os procedimentos de fiscalização da
instalação e do funcionamento de atividades em imóveis .
2.5 - Decreto nº 49.969/08, 28 de Agosto de 2008
Regulamenta a expedição de Auto de Licença de Funcionamento, Alvará de
Funcionamento, Alvará de Autorização para Eventos Públicos e Temporários e Termo
de Consulta de Funcionamento, em consonância com as Leis nº 10.205, de 4 de
dezembro de 1986, e nº 13.885, de 25 de agosto de 2004; revoga os Decretos e a
portaria que especifica: Decreto nº 15.636, de 18 de janeiro de 1979, Decreto nº 24.636,
de 24 de setembro de 1987, Decreto nº 32.543, de 3 de novembro de 1992, Decreto nº
34.571, de 11 de outubro de 1994, Decreto nº 41.361, de 13 de novembro de 2001, e
Decreto nº 41.532, de 20 de dezembro de 2001, o § 1º do artigo 12 do Decreto nº
44.577, de 7 de abril de 2004, Decreto nº 49.669, de 24 de junho de 2008 e Portaria nº
395/03-Pref, de 19 de dezembro de 2003.

Elaborado por:

Analisado por:

Professor :

Marcelo Gandra Falcone

Alessandra Aparecida Vieira

Marcelo Gandra Falcone

QUANDO IMPRESSO CONSIDERAR PIRATARIA - CÓPIA NÃO AUTORIZADA
UNINOVE

Rev. B

Engenharia de Avaliações e Perícias
Manutenção Predial e Avaliação de Máquinas
e Equipamentos

16/07/2011
Folha 361/424

2.6 - Portaria 367/2001 – Dispõe sobre procedimentos nos pedidos de Alvará de
Funcionamento de Locais de Reunião que dependam de decisão de processo de
regularização

3 – Legislação Referente a Alvará de Autorização
3.1 - Portaria 395 / 03 – Alvará de Autorização de Eventos temporários revogado
pelo Decreto 49.969/08;
4.3.2 – Portaria nº 1105, de 2007. Os locais, nos quais se pretenda realizar bailes e
eventos carnavalescos ou similares, deverão possuir condições regulares de
funcionamento para a obtenção da AUTORIZAÇÃO ESPECIAL. Revogada pelo
Decreto 49.969/08;
4.3.3 - Decreto nº 49.969/08, 28 de Agosto de 2008
Regulamenta a expedição de Auto de Licença de Funcionamento, Alvará de
Funcionamento, Alvará de Autorização para Eventos Públicos e Temporários e Termo
de Consulta de Funcionamento, em consonância com as Leis nº 10.205, de 4 de
dezembro de 1986, e nº 13.885, de 25 de agosto de 2004; revoga os Decretos e a
portaria que especifica: Decreto nº 15.636, de 18 de janeiro de 1979, Decreto nº 24.636,
de 24 de setembro de 1987, Decreto nº 32.543, de 3 de novembro de 1992, Decreto nº
34.571, de 11 de outubro de 1994, Decreto nº 41.361, de 13 de novembro de 2001, e
Decreto nº 41.532, de 20 de dezembro de 2001, o § 1º do artigo 12 do Decreto nº
44.577, de 7 de abril de 2004, Decreto nº 49.669, de 24 de junho de 2008 e Portaria nº
395/03-Pref, de 19 de dezembro de 2003.

4.4 – Leis e Decretos Referentes á Regularização da Edificação e
Anistia
4.4.1 - Lei nº 11.522 de 04 de Maio de 1994.
DISPOE SOBRE A REGULARIZACAO DE EDIFICACOES E DA OUTRAS PROVIDENCIAS.(PL469/91)
OBS:PARTES VETADAS DA LEI(INC.IX ART.3 E PAR.3 ART.7)-PUBLICACAO DOM 200794P.39;
REPUBLICACAO PARTES VETADAS DA LEI-DOM 270794,P.36

4.4.2 - Lei nº 13098 de 14 de Dezembro de 2000
Altera o inciso ix,do art.3.; o paragrafo 3.,do art.7.; os artigos 10, 14 e 16; o paragrafo
unico do art.15 e acrescenta o artigo 19 da Lei 11.522/94
4.4.3 – Lei n° 13.558, de 14 de Abril de 2003.
(Projeto de Lei nº 692/01, do Executivo, aprovado na forma do Substitutivo do
Legislativo)
Dispõe sobre a regularização de edificações e dá outras providências.

Elaborado por:

Analisado por:

Professor :

Marcelo Gandra Falcone

Alessandra Aparecida Vieira

Marcelo Gandra Falcone

QUANDO IMPRESSO CONSIDERAR PIRATARIA - CÓPIA NÃO AUTORIZADA
UNINOVE

Rev. B

Engenharia de Avaliações e Perícias
Manutenção Predial e Avaliação de Máquinas
e Equipamentos

16/07/2011
Folha 362/424

4.4.4 – Lei n° 13.876, de 23 de Julho de 2004.
Altera disposições da Lei nº 13.558, de 14 de abril de 2003, que dispõe sobre a
regularização de edificações, e revoga a Lei nº 13.740, de 15 de janeiro de 2004.
4.4.5 - Decreto nº 34.632/94
Prorroga ate 31/12/94 prazo p/apresentacao documentos protocolamento/recolhimento
cf.lei
4.4.6 - Decreto nº 34313/94
Regulamenta a lei;art.30-data da vigencia da lei 11.522/94, DOM 200794,p.39promulga inc.ix, art. 3 e par. 3 ,art.7 anteriormente vetadas;repub.DOM 270794,p.36

4.4.7 – Decreto n° 43.383, de 25 de Junho de 2003.
Regulamenta a Lei nº 13.558, de 14 de abril de 2003, que dispõe sobre a regularização
de edificações e dá outras providências.
4.4.8 – Decreto n° 45.324, de 24 de Setembro de 2004.
Regulamenta a Lei nº 13.558, de 14 de abril de 2003, alterada pela Lei nº 13.876, de 23
de julho de 2004, que dispõe sobre a regularização de edificações.

4.5 - Leis e Decretos referentes à Uso e Ocupação de Solo
4.5.0 – Lei 10.205, de 04 de dezembro de 1986. Dispõe e disciplina a expedição de
Licença de Funcionamento, e da outras providências.
4.5.1 - Lei 11.501, de 11 de abril de 1994. Dispõe sobre o controle e a fiscalização das
atividades que geram poluição sonora, ou seja, dispõe sobre o controle e a fiscalização
das atividades que gerem poluição sonora; impõe penalidades, e dá outras providências.
4.5.2 - Lei 11.631, de 21de setembro de 1994. Altera redação do art. 3º da lei 11.501
4.5.3 - Lei 11.986, de 16 de janeiro de 1996. Altera o art. 1º, 3º, 4º, 6º, 8º e 9º
.Suprime o art. 7º e 10 da lei 11.501
4.5.4 - Lei 11.804, de 19 de junho de 1995. Dispõe sobre avaliação da aceitabilidade
de ruídos na Cidade de São Paulo, visando o conforto da comunidade. Revoga a Lei
8.106, de 30 de agosto de 1974 e seu Decreto Regulamentador 11.467, de 30 de outubro
de 1974.
4.5.5 - Lei 13.885, de 25 de Agosto de 2004. (Projeto de Lei nº 139/04, do Executivo,
aprovado na forma de Substitutivo do Legislativo) Estabelece normas complementares
ao Plano Diretor Estratégico, institui os Planos Regionais Estratégicos das
Subprefeituras, dispõe sobre o parcelamento, disciplina e ordena o Uso e Ocupação do
Solo do Município de São Paulo.
Elaborado por:

Analisado por:

Professor :

Marcelo Gandra Falcone

Alessandra Aparecida Vieira

Marcelo Gandra Falcone

QUANDO IMPRESSO CONSIDERAR PIRATARIA - CÓPIA NÃO AUTORIZADA
UNINOVE

Rev. B

Engenharia de Avaliações e Perícias
Manutenção Predial e Avaliação de Máquinas
e Equipamentos

16/07/2011
Folha 363/424

4.5.6 - Decreto no: 33132 - Dispõe sobre a substituição e retirada de Para-raios
radioativos, e da outras providencias.
4.5.6 – Decreto 45. 817, de 4 de Abril de 2005. Dispõe sobre a classificação dos usos
residenciais e não residenciais.

4.6 - Legislação referente à Estádios
4.6.1 – Lei 11.791, de 1 de Junho de 1995. Dispõe sobre a obrigatoriedade da
implantação de mecanismos apropriados para a contagem do público junto aos locais de
entrada de todos os estádios de futebol no município de São Paulo.
4.6.2 – Lei 11.873, de 21 de Novembro de 1995. Instalação de sistema de detecção de
metais em ginásios esportivos e estádios de futebol.
4.6.3 - Lei 12.016, de 2 de Abril de 1996. Dispõe sobre a obrigatoriedade dos Estádios
de Futebol criarem e implantarem campanhas de conscientização para diminuir a
violência em suas dependências.
4.6.4 – Lei 12.093, de 25 de Junho de 1996. Torna obrigatória a manutenção de
Unidades de Atendimento Médico Móveis nos estádios de futebol, ginásios esportivos e
locais de grande concentração de pessoas.
4.6.5 – Lei 12.402, de 4 de Julho de 1997. Veda a comercialização de bebidas
alcoólicas nos estádios.
4.6.6 – Lei 12.561, de 8 de Janeiro de 1998. Dispõe sobre a criação de locais
específicos, reservados exclusivamente para deficientes físicos que necessitem de
cadeira de rodas para sua locomoção, nos Estádios de Futebol e Ginásios esportivos do
Município de São Paulo, e dá outras providências.
4.6.7 – Lei 13.945, de 7 de Janeiro de 2005. Refere-se à manutenção de aparelhos
desfibriladores.
4.6.8 - Lei 14.621, de 11 de Dezembro de 2007. Altera o art. 1º da Lei nº 13.945, de 7
de janeiro de 2005.
4.6.9 - Lei 14.726, de 15 de Maio de 2008. Estabelece normas para repressão a
comercialização e ao consumo de bebidas alcoólicas nos estádios de futebol e conjuntos
poliesportivos no município de São Paulo, em eventos esportivos profissionais e dá
outras providências.
4.6.10 - Decreto 27.820, de 15 de Junho de 1989. Dispõe sobre a atuação do
departamento de Controle de Uso de Imóveis – Contru, no controle e na fiscalização
Elaborado por:

Analisado por:

Professor :

Marcelo Gandra Falcone

Alessandra Aparecida Vieira

Marcelo Gandra Falcone

QUANDO IMPRESSO CONSIDERAR PIRATARIA - CÓPIA NÃO AUTORIZADA
UNINOVE

Rev. B

Engenharia de Avaliações e Perícias
Manutenção Predial e Avaliação de Máquinas
e Equipamentos

16/07/2011
Folha 364/424

relativos a segurança de uso de estádios, ginásios de esportes e similares, e dá outras
providências.
4.6.11- Decreto 48.379, de 25 de Maio de 2007. Dispõe sobre a transferência de parte
das competências da Secretaria Municipal de Habitação para as Subprefeituras, em face
das disposições da Lei n° 13.885, de 25 de agosto de 2004, conforme especifica.
4.6.12 - Decreto 49.277, de 4 de Março de 2008 . Regulamenta a Lei nº 13.945, de 7
de janeiro de 2005, alterada pela Lei nº 14.621, de 11 de dezembro de 2007, que dispõe
sobre a obrigatoriedade da manutenção de aparelho desfibrilador externo automático
nos locais que designa; revoga o Decreto nº 46.914, de 17 de janeiro de 1996.
4.6.13 – Portaria 014/SehabG/96, de 1996. Determina que os estádios esportivos para
efeito de cálculo de lotação, deverão atender os parâmetros estabelecidos.
4.6.14 – Portaria 508/SehabG/04, de 2004. Refere-se à fixação da lotação dos
estádios.
4.6.15 – Portaria 659/SehabG/95, de 1995. Os estádios de futebol, deverão ser
adaptados para atender as exigências que especifica, devido a precariedade das
estruturas dos estádios de futebol da cidade de São Paulo constatadas em vistorias do
CONTRU.

4.7 – Legislação Referente à Circos e Parques.
4.7.1 - Lei 11.359, de 17 de Maio de 1993.
Proibição de rodeio, tourada ou eventos similares.
4.7.2 - Lei 13.206, de 8 de Novembro de 2001.
Contrato de seguro contra danos e causados por seus equipamentos a terceiros.
4.7.3 – Lei 13.595/03, de 26 de Maio de 2003.
Estabelece normas a serem observadas por circos quando da apresentação de animais
ferozes, e dá outras providências.
4.7.4 - Lei 14.014, de 30 de Junho de 2005.
Proíbe utilização de animais de qualquer espécie em circos e congêneres.
4.7.5 - Decreto 37.584, de 18 de Agosto de 1998.
Regulamenta a Lei 11.359/93.
4.7.6 - Decreto 41.636, de 23 de Janeiro de 2002.
Regulamenta a lei 13.206/01.
Elaborado por:

Analisado por:

Professor :

Marcelo Gandra Falcone

Alessandra Aparecida Vieira

Marcelo Gandra Falcone

QUANDO IMPRESSO CONSIDERAR PIRATARIA - CÓPIA NÃO AUTORIZADA
UNINOVE

Rev. B

Engenharia de Avaliações e Perícias
Manutenção Predial e Avaliação de Máquinas
e Equipamentos

16/07/2011
Folha 365/424

4.7.7 – Decreto 44.026, de 22 de Outubro de 2003.
Regulamenta a Lei nº 13.595, de 26 de maio de 2003, que estabelece normas a serem
observadas por circos quando da apresentação de animais ferozes.
4.7.8 - Decreto 46.987, de 8 de Fevereiro de 2006.
Regulamenta a Lei 14.014/05.
4.7.9 - Decreto 47.803, de 24 de Outubro de 2006.
Dá nova redação ao "caput" do artigo 3º e ao § 1º do artigo 4º do Decreto nº 46.987, de
8 de fevereiro de 2006, que regulamenta a Lei nº 14.014, de 30 de junho de 2005, que
proíbe, a utilização de animais de qualquer espécie.
4.7.10 - Decisão Normativa Nº 52 do Confea, de 25 de Agosto de 1994, Dispõe sobre
a obrigatoriedade de responsável técnico pelas instalações das empresas que exploram
parques de diversões.

4.8 - Legislação Referente ao Tabagismo.
4.8.1 – Lei 10.862, de 4 de Julho de 1990.
Dispõe sobre a restrição ao tabagismo nos locais que especifica, e dá outras
providências.
4.8.2 – Decreto 34.836, de 31 de Janeiro de 1995.
Regulamenta a Lei 10.862/90.
4.8.3 – Decreto 49.524, de 27 de Maio de 2008.
Regulamenta Leis 10.862/90 e Lei nº 14.695 referente ao uso de charutos, cigarrilhas e
cachimbos.

4.9 - Legislação Referente à Acessibilidade.
4.9.1 Legislação Municipal


Código de Obras e Edificações - Lei 11.228/92
regulamentada pelo Decreto 32.392/92 de 23/09/1992;

de 26/06/1992,



Lei nº 11.345, de 14 de abril de 1993. (Projeto de Lei nº 626/91, do Vereador
Antônio Carlos Caruso)
Dispõe sobre a adequação das edificações à pessoa portadora de deficiência, e dá
outras providências.


Lei nº 11.424, de 30 de setembro de 1993.
Dispõe sobre o acesso de pessoas deficientes físicas a cinemas, teatros e casas de
espetáculos;
Elaborado por:

Analisado por:

Professor :

Marcelo Gandra Falcone

Alessandra Aparecida Vieira

Marcelo Gandra Falcone

QUANDO IMPRESSO CONSIDERAR PIRATARIA - CÓPIA NÃO AUTORIZADA
UNINOVE

Rev. B

Engenharia de Avaliações e Perícias
Manutenção Predial e Avaliação de Máquinas
e Equipamentos

16/07/2011
Folha 366/424



Lei nº 11.987, de 16 de Janeiro de 1996.
Dispõe sobre a obrigatoriedade de instalação nos parques do Município de São
Paulo, de pelo menos um brinquedo destinado para crianças portadoras de doenças
mentais, ou deficiência física, e dá outras providências.


Lei n° 12.363, de 13 de Junho de 1997.
Prevê menu em braile para deficientes visuais em restaurantes.



Lei nº 12.815, de 06 de abril de 1999.
Dá nova redação ao artigo 1º da Lei nº 11.424, de 30 de setembro de 1993, que
dispõe sobre o acesso de pessoas portadoras de deficiência física a cinemas, teatros,
casas de espetáculos e estabelecimentos bancários;


Lei nº 12.821, de 07 de abril de 1999.
Dispõe sobre a obrigatoriedade dos estabelecimentos bancários com acesso
único através de porta giratória manterem acesso, em rampa quando for o caso, para
as pessoas portadoras de deficiência física, que se locomovem em cadeira de rodas,
e dá outras providências;


Decreto nº 37.648, de 25 de setembro de 1998.
Institui o Selo de Acessibilidade, torna obrigatório o seu uso nos bens que
especifica e dá outras providências;


Decreto nº 37.649, de 26 de Setembro de 1998..
Regulamenta as Leis 11.345/93 e 11424/93.



Decreto nº 37.650, de 25 de setembro de 1998.
Dá nova redação aos artigos 1º, 4º, inciso, alínea “b” e 5º do Decreto nº 36.072,
de 09 de maio de 1996, e dá outras providências;


Decreto nº 39.651, de 27 de julho de 2000.
Institui a Comissão Permanente de Acessibilidade – CPA, e dá outras
providências;


Decreto nº 45.122, de 12 de agosto de 2004
Consolida a regulamentação das Leis nº 11.345, de 14 de abril de 1993, nº
44.424, de 30 de setembro de 1993, nº 12.815, de 6 de abril de 1999 e nº 12.821, de
07 de abril de 1999, que dispõem sobre a adequação das edificações à acessibilidade
das pessoas com deficiência ou com mobilidade reduzida;


Decreto 45.552, de 29 de Novembro de 2004.
Dispõe sobre selo de acessibilidade instituído pelo decreto 37.648/98.



Decreto nº 45.990, de 20 de junho de 2005.

Elaborado por:

Analisado por:

Professor :

Marcelo Gandra Falcone

Alessandra Aparecida Vieira

Marcelo Gandra Falcone

QUANDO IMPRESSO CONSIDERAR PIRATARIA - CÓPIA NÃO AUTORIZADA
UNINOVE

Rev. B

Engenharia de Avaliações e Perícias
Manutenção Predial e Avaliação de Máquinas
e Equipamentos

16/07/2011
Folha 367/424

Institui os Selos de Habitação Universal e de Habitação Visitável para unidades
habitacionais unifamiliares e multifamiliares já construídas ou em construção.


Portaria Intersecretarial Nº 2/2008 Secretaria: SMPED /SEHAB/SMSP
Institui "Check list" orientativo e declaratório quanto aos aspectos da
Acessibilidade e Manual de Instruções Técnicas relativas à Acessibilidade nas
Edificações e Vias públicas para apoio aos órgãos municipais e aos profissionais da
área de construção civil.


Resolução nº 06 –CPA/ 2002.
Plataformas de elevador vertical/ inclinado

4.9.2. Legislação do Estado de São Paulo


LEI N.º 5.500, DE 31 DE DEZEMBRO DE 1986
Dá nova redação ao art. 1º da Lei n.º 3.710, de 4 de janeiro de 1983, que
estabelece condições para acesso aos edifícios públicos pelos deficientes
físicos.



LEI N.º 5.869, DE 28 DE OUTUBRO DE 1987
Obriga as empresas permissionárias, que especifica, a permitir a entrada de
deficientes físicos pela porta dianteira dos coletivos.



LEI N.º 7.466, DE 1º DE AGOSTO DE 1991
Dispõe sobre atendimento prioritário a idosos, portadores de deficiência e
gestantes.



LEI N.º 8.894, DE 16 DE SETEMBRO DE 1994
Dispõe sobre o financiamento de equipamentos corretivos a portadores de
deficiência.



LEI N.º 9.086, DE 03 DE MARÇO DE 1995
Determina aos órgãos da Administração Direta e Indireta a adequação de
seus projetos, edificações, instalações e mobiliário ao uso de pessoas
portadoras de deficiências.



LEI N.º 9.486, DE 04 DE MARÇO DE 1997
Institui o Dia Estadual de Luta das Pessoas Portadoras de Deficiência.



LEI N.º 9.732, DE 15 DE SETEMBRO DE 1997
Dá nova redação ao art. 1º da Lei n.º 5.869, de 28 de outubro de 1987, que
dispõe sobre o embarque, nos coletivos intermunicipais, dos usuários que
especifica.



LEI N.º 9.938, DE 17 DE ABRIL DE 1998
Dispõe sobre os direitos da pessoa portadora de deficiência.

Elaborado por:

Analisado por:

Professor :

Marcelo Gandra Falcone

Alessandra Aparecida Vieira

Marcelo Gandra Falcone

QUANDO IMPRESSO CONSIDERAR PIRATARIA - CÓPIA NÃO AUTORIZADA
UNINOVE

Rev. B

Engenharia de Avaliações e Perícias
Manutenção Predial e Avaliação de Máquinas
e Equipamentos

16/07/2011
Folha 368/424



DECRETO N.º 23.131, DE 19 DE DEZEMBRO DE 1984
Cria o Conselho Estadual para Assuntos da Pessoa Deficiente.



DECRETO N.º 23.250, DE 1º DE FEVEREIRO DE 1985
Determina atendimento preferencial a idosos, deficientes físicos e gestantes,
por parte dos órgãos estaduais que prestam atendimento direto ao público.



DECRETO N.º 25.087, DE 28 DE ABRIL DE 1986
Dispõe sobre medida para assegurar às pessoas deficientes condições
adequadas de participação nos concursos públicos e processos seletivos.



DECRETO N.º 27.383, DE 22 DE SETEMBRO DE 1987
Dispõe sobre adequação de próprios estaduais ao uso de pessoas portadoras
de deficiência física, e dá outras providências.



DECRETO N.º 33.823, DE 21 DE SETEMBRO DE 1991
Institui o Programa Estadual de Atenção à Pessoa Portadora de Deficiência.



DECRETO N.º 33.824, DE 21 DE SETEMBRO DE 1991
Dispõe sobre adequação de próprios estaduais à utilização de portadores de
deficiências, e dá outras providências.



DECRETO N.º 34.753, DE 1º DE ABRIL DE 1992
Regulamenta a Lei Complementar nº 666, de 26 de novembro de 1991, que
concede isenção de pagamento de tarifas de transporte coletivo urbano e dá
providências correlatas.



RESOLUÇÃO STM-101, DE 28 DE MAIO DE 1992
Disciplina as medidas administrativas e operacionais necessárias à
implantação da isenção do pagamento de tarifas de transporte coletivo
urbano, de âmbito metropolitano, sob responsabilidade do Estado, concedida
às pessoas portadoras de deficiência.



LEI ESTADUAL Nº 11.369, DE 28/03/2003
Veda qualquer forma de discriminação racial, ao idoso, à pessoa portadora
de necessidades especiais, à mulher e dá outras providências.

4.9.3. Legislação Federal



Constituição da República
Decreto nº 5.626, de 22 de dezembro de 2005
Regulamenta a Lei nº 10.436, de 24 de abril de 2002, que dispõe sobre a

Elaborado por:

Analisado por:

Professor :

Marcelo Gandra Falcone

Alessandra Aparecida Vieira

Marcelo Gandra Falcone

QUANDO IMPRESSO CONSIDERAR PIRATARIA - CÓPIA NÃO AUTORIZADA
UNINOVE

Rev. B

Engenharia de Avaliações e Perícias
Manutenção Predial e Avaliação de Máquinas
e Equipamentos

16/07/2011
Folha 369/424

Língua Brasileira de Sinais - Libras, e o artigo 18 da Lei nº 10.098, de 19 de
dezembro de 2000.


LEI Nº 11.126, DE 27 DE JUNHO DE 2005.
Dispõe sobre o direito do portador de deficiência visual de ingressar e
permanecer em ambientes de uso coletivo acompanhado de cão-guia.



Decreto n° 5296, de 02 de dezembro de 2004
Regulamenta as Leis n°s 10.048, de 8 de novembro de 2000, que dá
prioridade de atendimento às pessoas que especifica, e 10.098, de 19 de
dezembro de 2000, que estabelece normas gerais e critérios básicos para a
promoção da acessibilidade.



LEI Nº 10.436, DE 24 DE ABRIL DE 2002



Dispõe sobre a Língua Brasileira de Sinais - Libras e dá outras
providências.



Decreto nº 3.691, de 19/12/00, que regulamenta a Lei nº 8.899, de
29/06/94, que instituiu o passe livre para pessoas portadoras de deficiência
em serviço convencional das empresas de transporte coletivo interestadual de
passageiros nas modalidades ônibus, trem ou barco, incluindo transportes
interestaduais semi-urbanos.



Lei nº 10.098, de 19/12/00, que estabelece normas gerais e critérios
básicos para a promoção da acessibilidade das pessoas portadoras de
deficiência ou com mobilidade reduzida.



Lei nº 10.097, de 19/12/00, que altera dispositivos da CLT normatizando
o contrato de aprendizagem para adolescentes entre 14 e menor de 18 anos.



Lei nº 10.048, de 08/11/00, que estabelece atendimento prioritário às
pessoas portadoras de deficiência física, idosos, gestantes, lactantes
acompanhadas de crianças de colo.



Decreto nº 3.298, de 20 de dezembro de 1999, que regulamenta a Lei
7.853/99 de 24/10/99, dispõe sobre a Política Nacional para a Integração da
Pessoa Portadora de Deficiência, consolida normas de proteção e dá outras
providências.



Lei nº 9.867, de 10/11/99, que dispõe sobre a criação de Cooperativas
Sociais, nelas incluídas aquelas formadas por portadores de deficiência,
dependentes químicos, egressos do sistema prisional, condenados a penas
alternativas à detenção e adolescentes em idade adequada ao trabalho, que se
encontrem em difícil situação econômica.

Elaborado por:

Analisado por:

Professor :

Marcelo Gandra Falcone

Alessandra Aparecida Vieira

Marcelo Gandra Falcone

QUANDO IMPRESSO CONSIDERAR PIRATARIA - CÓPIA NÃO AUTORIZADA
UNINOVE

Rev. B

Engenharia de Avaliações e Perícias
Manutenção Predial e Avaliação de Máquinas
e Equipamentos

16/07/2011
Folha 370/424



Decreto nº 3.048, de 6 de maio de 1999. aprova o Regulamento da
Previdência Social.



Lei nº 9.790, de 23/3/99, que dispõe sobre a qualificação de pessoas
jurídicas de direito privado, sem fins lucrativos, como Organizações da
Sociedade Civil de Interesse Público e institui o Termo de Parceria.
Regulamentada pelo Decreto 3.100, de 30/6/99.



Lei nº 9.394, de 20/12/96, que estabelece diretrizes e bases da educação
nacional. Define educação e habilitação profissional e tratamento especial a
pessoas portadoras de deficiência e superdotados. Regulamentada pelo
Decreto 2.208, de 17/4/97.



Lei nº 8.859, de 23/03/94, que modifica dispositivos da Lei nº 6.494, de 7
de dezembro de 1997, estendendo aos alunos de ensino especial o direito à
participação em atividades de estágio.



Lei nº 8.742, de 07/12/93, que trata da organização da assistência social.
No art. 20 prevê o benefício da prestação continuada, garantindo ao portador
de deficiência carente e incapacitado para a vida independente e para o
trabalho, um salário mínimo mensal.



Lei nº 8.666, de 21/06/93, que trata das licitações do Poder Público,
permitindo sua dispensa para contratação de associação de portadores de
deficiência física, sem fins lucrativos e de comprovada idoneidade, por
órgãos ou entidades da administração pública (art. 24, inciso XX).



Lei nº 8.213, de 24/07/91, cujo art. 93 obriga a empresa com mais de cem
empregados a preencher de dois a cinco por cento de seus cargos, com
beneficiários reabilitados ou pessoas portadoras de deficiência habilitadas,
sob pena de multa. Esta, a proporção: até 200 empregados – 2%; de 201 a
500 – 3%; de 501 a 1000 – 4% de; 1001 em diante – 5%. A dispensa de
trabalhador reabilitado ou de deficiente habilitado, no contrato por prazo
determinado de mais de 90 dias, e a imotivada, no contrato por prazo
indeterminado, só poderão ocorrer após a contratação de substituto de
condição semelhante.



O art. 16 trata dos beneficiários do regime geral da previdência social na
condição de segurado (incisos I, III e IV). O termo ali utilizado e que
contempla a pessoa portadora de deficiência é, equivocadamente, "inválido".



O art. 77 trata da pensão por morte e inclui o portador de deficiência,
mais uma vez, aqui designado como "inválido".

Elaborado por:

Analisado por:

Professor :

Marcelo Gandra Falcone

Alessandra Aparecida Vieira

Marcelo Gandra Falcone

QUANDO IMPRESSO CONSIDERAR PIRATARIA - CÓPIA NÃO AUTORIZADA
UNINOVE

Rev. B

Engenharia de Avaliações e Perícias
Manutenção Predial e Avaliação de Máquinas
e Equipamentos

16/07/2011
Folha 371/424



Lei nº 8.112, de 11/12/90, que assegura aos portadores de deficiência o
direito de se inscreverem em concurso público para provimento de cargos
cujas atribuições sejam compatíveis com a deficiência de que são portadores,
reservando-lhes até 20% do total das vagas oferecidas no concurso (art. 5º, §
2º).



Lei nº 8.069, de 13/07/90, Estatuto da Criança e do Adolescente, que
assegura ao adolescente portador de deficiência o trabalho protegido,
garantindo-se seu treinamento e colocação no mercado de trabalho e também
o incentivo à criação de oficinas abrigadas.



Lei nº 7.853, de 24/10/89, que dispõe sobre o apoio às pessoas portadoras
de deficiência, sua integração social e sobre a CORDE (Coordenadoria
Nacional para Integração da Pessoa Portadora de Deficiência). Aborda a
tutela jurisdicional de interesses coletivos ou difusos dessas pessoas e as
responsabilidades do Ministério Público. Define como crime, punível com
reclusão, obstar, sem justa causa, o acesso de alguém a qualquer cargo
público, por motivos derivados de sua deficiência, bem como negar-lhe, pelo
mesmo motivo, emprego ou trabalho.



Lei nº 6.494, de 7/12/77, que dispõe sobre os estágios de estudantes de
estabelecimentos de ensino superior e de ensino profissionalizante do 2º
Grau, supletivo e escolas de educação especial.



Lei nº 5.764/71, de 16/12/71, que define a Política Nacional de
Cooperativismo, institui o regime jurídico das sociedades cooperativas e dá
outras providências.

4.9.4. Legislação Internacional


Convenção nº III da OIT, de 25/06/58, promulgada pelo Decreto nº
62.150, de 19/01/68, que trata da discriminação em matéria de emprego e
profissão.



Art. Iº, I, b – (discriminação compreende) qualquer outra distinção,
exclusão ou preferência, que tenha por efeito anular ou reduzir a igualdade
de oportunidades, ou tratamento, emprego ou profissão.
Ressalva que a distinção, exclusão ou preferência, com base em
qualificações exigidas para determinado emprego não implicam em
discriminação.



Recomendação nº III, de 25/06/58, que suplementa a Convenção III da
OIT sobre discriminação em matéria de emprego e profissão. Define
discriminação, formula políticas e sua execução.

Elaborado por:

Analisado por:

Professor :

Marcelo Gandra Falcone

Alessandra Aparecida Vieira

Marcelo Gandra Falcone

QUANDO IMPRESSO CONSIDERAR PIRATARIA - CÓPIA NÃO AUTORIZADA
UNINOVE

Rev. B

Engenharia de Avaliações e Perícias
Manutenção Predial e Avaliação de Máquinas
e Equipamentos

16/07/2011
Folha 372/424



Resolução nº 3.447, aprovada pela Assembléia Geral da ONU em
09/12/75, sobre a Declaração dos Direitos das Pessoas Deficientes.



Resolução nº 2.896, aprovada pela Assembléia Geral da ONU, sobre a
Declaração dos Direitos dos Retardados Mentais.



Declaração Universal dos Direitos do Homem e do Cidadão
– aprovada pela Assembléia Geral da Organização das Nações Unidas, em
10/12/48, "todo o homem tem direito ao trabalho, à livre escolha de
emprego, à condições justas e favoráveis de trabalho e à proteção contra o
desemprego.



Resolução nº 45, de 14/12/90, 68ª Assembléia Geral das Nações Unidas
– ONU. Execução do Programa de Ação Mundial para as pessoas
Deficientes e a Década das Pessoas Deficientes das Nações Unidas,
compromisso mundial no sentido de se construir uma sociedade para todos,
segundo a qual a Assembléia Geral solicita ao Secretário-Geral uma
mudança no foco do programa das Nações Unidas sobre deficiência
passando da conscientização para a ação, com o propósito de se concluir com
êxito uma sociedade para todos por volta do ano 2010.



Recomendação nº 99, de 25/06/55, relativa à reabilitação profissional das
pessoas portadoras de deficiência – aborda princípios, e métodos de
orientação vocacional e treinamento profissional, meios de aumentar
oportunidades de emprego para os portadores de deficiência, emprego
protegido, disposições especiais para crianças e jovens portadores de
deficiência.



Convenção nº 159 da OIT, de 20/06/83, promulgada pelo Decreto nº 129,
de 22.05.91, que trata da política de readaptação profissional e emprego de
pessoas portadoras de deficiência. Essa política é baseada no princípio de
igualdade de oportunidade entre os trabalhadores portadores de deficiência e
os trabalhadores em geral. Medidas especiais positivas que visem garantir
essa igualdade de oportunidades não serão consideradas discriminatórias
com relação aos trabalhadores em geral.



Recomendação nº 168, de 20/06/83, que suplementa a convenção relativa
à reabilitação profissional e emprego de 1983 e a Recomendação relativa à
reabilitação profissional de 1955. Prevê a participação comunitária no
processo, a reabilitação profissional em áreas rurais, contribuições
de empregadores e trabalhadores e dos próprios portadores de deficiência na
formulação de políticas específicas.



Convenção Interamericana para a Eliminação de todas as formas de
Discriminação contra as Pessoas Portadoras de Deficiência – promulgada

Elaborado por:

Analisado por:

Professor :

Marcelo Gandra Falcone

Alessandra Aparecida Vieira

Marcelo Gandra Falcone

QUANDO IMPRESSO CONSIDERAR PIRATARIA - CÓPIA NÃO AUTORIZADA
UNINOVE

Rev. B

Engenharia de Avaliações e Perícias
Manutenção Predial e Avaliação de Máquinas
e Equipamentos

16/07/2011
Folha 373/424

pelo Decreto 3.956 de 08 de outubro de 2001, que tem por objetivo eliminar
todas as formas de discriminação contra as pessoas portadoras de deficiência
e propiciar sua plena integração à sociedade.

4.10 – Legislação Referente à Teatros e Cinemas.
4.10.1 – Lei 11.545, de 7 de Junho de 1994.
Disciplina o uso de aparelhos de telefonia celular e congêneres no interior dos cinemas,
teatros, hospitais, velórios, casas de espetáculos e nas dependências das repartições
públicas municipais, e dá outras providências.
4.10.2 – Lei 11.786, de 26 de Maio de 1995.
Torna obrigatória em todos os cinemas, cineclubes, cinematecas, teatros, casas de
espetáculo, estádios de futebol, ginásios de esportes e demais estabelecimentos
congêneres a manutenção de toda a lotação com lugares numerados.
4.10.3 – Lei 12.658, de 18 de Maio de 1998.
Obriga os cinemas, teatros, bibliotecas, ginásios esportivos, casas noturnas e
restaurantes a manter em suas dependências cadeiras ou poltronas especiais para uso de
pessoas obesas, e dá outras providências.
4.10.4 – Lei 13.451, de 22 de Novembro de 2002.
Altera a redação do artigo 1º da Lei nº 11.786, de 26 de maio de 1995, e dá outras
providências.
4.10.5 – Decreto 34.571, de 12 de Outubro de 1994.
Dispõe sobre a obrigatoriedade de divulgação das condições mínimas de segurança ao
público presente em locais de reunião, e da outras providências.
4.10.6 – Decreto 40.334, de 16 de Março de 2001.
Regulamenta a Lei nº 11.786, de 26 de maio de 1995, que torna obrigatória em todos os
cinemas, cineclubes, cinematecas, teatros, casas de espetáculo, estádio de futebol,
ginásios de esportes e demais estabelecimentos congêneres a manutenção de toda a
lotação com lugares numerados.

4.11 – Legislação Complementar.
4.11.1 – Lei 9.433, de 1 de Abril de 1982.
Estabelece penalidades às infrações referentes às normas especiais de segurança de uso,
e dá outras providências.
4.11.2 - Lei 11.136, 5 de Dezembro de 1991.
Dispõe sobre a obrigatoriedade de instalação de bebedouros para uso coletivo em todos
os Shopping-Centers localizados no Município de São Paulo, e da outras providências.
Elaborado por:

Analisado por:

Professor :

Marcelo Gandra Falcone

Alessandra Aparecida Vieira

Marcelo Gandra Falcone

QUANDO IMPRESSO CONSIDERAR PIRATARIA - CÓPIA NÃO AUTORIZADA
UNINOVE

Rev. B

Engenharia de Avaliações e Perícias
Manutenção Predial e Avaliação de Máquinas
e Equipamentos

16/07/2011
Folha 374/424

4.11.3 – Lei 11.501, de Abril de 1994.
Dispõe sobre o controle e a fiscalização das atividades que gerem poluição sonora;
impõe penalidades, e dá outras providências.
4.11.4 - Lei 11.495, de 11 de Abril de 1994.
Dispõe sobre a obrigatoriedade da instalação, pelos bancos e demais estabelecimentos
de crédito, de sanitários e bebedouros destinados aos seus usuários.
4.11.5 – Lei 11.804 de 19 de Junho de 1995.
Dispõe sobre avaliação da aceitabilidade de ruídos na Cidade de São Paulo, visando o
conforto da comunidade. Revoga a Lei 8.106, de 30 de agosto de 1974 e seu Decreto
Regulamentador 11.467, de 30 de outubro de 1974.
4.11.6 – Lei 13.214, de 22 de Novembro de 2001.
Dispõe sobre a obrigatoriedade de instalação de pára-raios, ou sistema de detecção nas
áreas que especifica e dá outras providências.
4.11.7 - Lei 13.725, de 15 de maio de 2004
Institui o Código Sanitário do Município de São Paulo.
OBS: Código Sanitário do Estado de São Paulo : Lei Nº 10.083, de 23 de setembro
de 1998
4.11.8 – Lei 13.885, de 25 de Agosto de 2004.
Referente aos limites de ruído baseado no zoneamento.
4.11.9 – Lei 14.450, de 22 de junho de 2007
Institui o Programa de Combate à Venda Ilegal de Bebida Alcoólica e de Desestímulo
ao seu Consumo por Crianças e Adolescentes, no âmbito do Município de São Paulo.
4.11.10 - Lei 14.724, de 15 de maio de 2008
Dispõe sobre a obrigatoriedade de fornecimento gratuito de água potável pelas
danceterias, salões de dança e estabelecimentos similares aos seus freqüentadores.
4.11.11 – Decreto 10.878, de 8 de Fevereiro de 1974.
Institui normas especiais para segurança dos edifícios a serem observadas na elaboração
dos projetos e na execução bem como no equipamento e dispõe ainda sobre sua
aplicação em caráter prioritário.
4.11.12 - Decreto 12.706, de 9 de Março de 1976.
Estabelece normas para utilização de gás combustível nos edifícios e construções em
geral, regulamentando os artigos 105 e 110 da Lei nº 8.266, de 20 de junho de 1975, e
dá outras providências.
4.11.13 – Decreto 24.714, de 8 de Outubro de 1987.
Regulamenta o sistema de fiscalização, disposições gerais para utilização de gás
combustível nos edifícios e construções em geral, e dá outras providências.
Elaborado por:

Analisado por:

Professor :

Marcelo Gandra Falcone

Alessandra Aparecida Vieira

Marcelo Gandra Falcone

QUANDO IMPRESSO CONSIDERAR PIRATARIA - CÓPIA NÃO AUTORIZADA
UNINOVE

Rev. B

Engenharia de Avaliações e Perícias
Manutenção Predial e Avaliação de Máquinas
e Equipamentos

16/07/2011
Folha 375/424

4.11.14 – Decreto 34.571, de 12 de Outubro de 1994.
Dispõe sobre a obrigatoriedade de divulgação das condições mínimas de segurança ao
público presente em locais de reunião, e dá outras providências.
4.11.15 – Decreto 42.479, de 7 de Outubro de 2002.
Regulamenta a Lei nº 13.214, de 22 de novembro de 2001.
4.11.16 - Decreto 44.577, de 07de Abril de 2004
Regulamenta a Lei Nº 13.725, de 15 de maio de 2004 que Institui o Código Sanitário do
Município de São Paulo.
4.11.17 – Decreto 49.662, de 20 de junho de 2008
Regulamenta a Lei nº 14.450, de 22 de junho de 2007, que institui o Programa de
Combate à Venda Ilegal de Bebida Alcoólica e de Desestímulo ao seu Consumo por
Crianças e Adolescentes no âmbito do Município de São Paulo.
4.11.18 - Decreto 50.079 de 08 de outubro de 2008
Regulamenta a Lei Nº 13.725, de 15 de maio de 2004 que Institui o Código Sanitário.
4.11.19 - Decreto 50.284 de 02 de Dezembro de 2008
Regulamenta a Lei Nº 13.725, de 15/05/04 que Institui o Código Sanitário - óleo
comestível.
4.11.20 – Portaria Intersecretarial No: 150 Ano: 1981 Secretaria: SEHAB
Institui normas que definam procedimentos básicos referentes aprovação de laudo
técnico segurança - LTS, execução obras ou serviços de adaptação e expedição auto de
verificação de segurança, conforme Decreto 17216/81, em especial art.19.
4.11.21 - Portaria No 1751 Ano: 2006 Secretaria: PREF
Aprova formulário padronizado do Laudo Técnico de Segurança - LTS, para instruir
pedidos de Auto de Verificação de Segurança- AVS e Alvará de Funcionamento para
Local de Reunião - AFLR

Elaborado por:

Analisado por:

Professor :

Marcelo Gandra Falcone

Alessandra Aparecida Vieira

Marcelo Gandra Falcone

QUANDO IMPRESSO CONSIDERAR PIRATARIA - CÓPIA NÃO AUTORIZADA
UNINOVE

Rev. B

Engenharia de Avaliações e Perícias
Manutenção Predial e Avaliação de Máquinas
e Equipamentos

16/07/2011
Folha 376/424

APENDICE 2 - NORMAS ABNT _ NBR POR ASSUNTO:

1 ACESSIBILIDADE


NBR 9050/04 – Acessibilidade de pessoas portadoras de deficiência a
edificações, espaços, mobiliários e equipamentos urbanos – Procedimento



NBR 9077/01 – Saídas de emergência em edifícios



NBR 9283/86 – Mobiliário Urbano



NBR 9284/86 – Equipamento Urbano



NBR 10098/87 – PB670 – Elevadores elétricos – Dimensões e condições do
projeto de construção



NBR 10982/90 – PB1448 – Elevadores elétricos – Dispositivos de operação e
sinalização



NBR 12892/93 – Projeto, fabricação e instalação de elevador unifamiliar.



NBR 13994/00 – Elevadores de passageiros – elevadores para transporte de
pessoa com deficiência.



NBR 14020 - Acessibilidade à pessoa com deficiência - Trem de longo percurso



NBR 14021 - Transporte - acessibilidade no sistema de trem urbano ou
metropolitano



NBR 14022 - Acessibilidade à pessoa com deficiência em ônibus e trólebus para
atendimento urbano e intermunicipal



NBR 14273 - Acessibilidade à pessoa com deficiência no transporte aéreo
comercial



NBR 14970-1 - Acessibilidade em veículos automotores - requisitos de
dirigibilidade



NBR 14970-2 - Acessibilidade em veículos automotores - diretrizes para
avaliação clínica de condutor



NBR 14970-3 - Acessibilidade em veículos automotores - diretrizes para
avaliação da dirigibilidade do condutor com mobilidade reduzida em veículo

Elaborado por:

Analisado por:

Professor :

Marcelo Gandra Falcone

Alessandra Aparecida Vieira

Marcelo Gandra Falcone

QUANDO IMPRESSO CONSIDERAR PIRATARIA - CÓPIA NÃO AUTORIZADA
UNINOVE

Rev. B

Engenharia de Avaliações e Perícias
Manutenção Predial e Avaliação de Máquinas
e Equipamentos

16/07/2011
Folha 377/424

automotor apropriado


NBR 15250 - Acessibilidade em caixa de auto-atendimento bancário



NBR 15290 - Acessibilidade em comunicação na televisão



NBR 15320/2005 - Acessibilidade à pessoa com deficiência no transporte
rodoviário



NBR 14022/2006 - Acessibilidade em veículos de características urbanas para o
transporte coletivo de passageiro



ISO/DIS 9386-1 – Plataforma elevatória com acionamento mecânico para
pessoas com mobilidade prejudicada – normas de segurança, dimensões e
funcionamento



NBR 15450/2006 - Acessibilidade de passageiro no sistema de transporte
aquaviário

2 ACÚSTICA


NBR 8572 Fixação de valores de redução de nível de ruído para tratamento
acústico de edificações expostas ao ruído aeronáutico – procedimento



NBR 10151 Acústica – Avaliação do ruído em áreas habitadas, visando o
conforto da comunidade – procedimento



NBR 10152 Níveis de ruído para conforto acústico



NBR 10829 (NB 1220) Caixilho para edificação – janela – medição de
atenuação acústica – método de ensaio



NBR 10830 (TB 355) Acústica dos edifícios



NBR 12179 Tratamento acústico em recintos fechados – procedimento

3 ADITIVOS PARA CONCRETO


NBR 11768 1992 Aditivos para Concreto de Cimento Portland



NBR 12317 1992 Verificação de Desempenho de Aditivos para Concreto Procedimento

Elaborado por:

Analisado por:

Professor :

Marcelo Gandra Falcone

Alessandra Aparecida Vieira

Marcelo Gandra Falcone

QUANDO IMPRESSO CONSIDERAR PIRATARIA - CÓPIA NÃO AUTORIZADA
UNINOVE

Engenharia de Avaliações e Perícias
Manutenção Predial e Avaliação de Máquinas
e Equipamentos



Rev. B
16/07/2011
Folha 378/424

NBR 1987 Aditivos Superplastificantes para Concreto de Cimento Portland

4 ALVENARIA


NBR 06136 1994 Bloco vazado de concreto simples para alvenaria estrutural



NBR 08215 1983 Prismas de blocos vazados de concreto simples para alvenaria
estrutural - Preparo e ensaio à compressão



NBR 08490 1984 Argamassas endurecidas para alvenaria estrutural - Retração
por secagem



NBR 08545 1984 Execução de Alvenaria sem Função Estrutural de Tijolos e
Blocos Cerâmicos



NBR 08798 1985 Execução e controle de obras em alvenaria estrutural de
blocos vazados de concreto



NBR 08949 1985 Paredes de alvenaria estrutural - Ensaio à compressão simples



NBR 10837 1989 Cálculo de alvenaria estrutural de blocos vazados de concreto

5 AMBIENTAL


NBR 14011 2000 Diretrizes para auditoria ambiental - Procedimentos de
auditoria - Auditoria de sistemas de gestao ambiental



NBR 14283 1999 resíduos em solos - determinação da biodegradação pelo
método respirométrico

6 AVALIAÇÃO


NBR 14653-1 2001 Avaliação de Bens - Procedimentos Gerais

Elaborado por:

Analisado por:

Professor :

Marcelo Gandra Falcone

Alessandra Aparecida Vieira

Marcelo Gandra Falcone

QUANDO IMPRESSO CONSIDERAR PIRATARIA - CÓPIA NÃO AUTORIZADA
UNINOVE

Rev. B

Engenharia de Avaliações e Perícias
Manutenção Predial e Avaliação de Máquinas
e Equipamentos

16/07/2011
Folha 379/424



NBR 14653-2 2004 Avaliação de Bens - Imóveis Urbanos



NBR 14653-3 2004 Avaliação de Bens - Imóveis Rurais



NBR 14653-4 2002 Avaliação de Bens - Empreendimentos



NBR 14653-5 2007 Avaliação de Bens - Máquinas, equipamentos, instalações e
bens industriais em geral



NBR 14653-6 2007 Avaliação de Bens - Recursos naturais e ambientais



NBR 14653-7 2008 Avaliação de Bens - Bens de patrimônios históricos,
artísticos, culturais, arqueológicos ou paisagísticos

7 ARMADURA PARA CONCRETO


NBR 06349 1991 Fio, Barra e Cordoalha de Aço para Armaduras de Protensão Ensaio de Tração



NBR 07477 1979 Determinação do Coeficiente de Conformação Superficial de
Barras e Fios de Aço Destinados a Armaduras de Concreto Armado



NBR 07478 1977 Método de Ensaio de Fadiga de Barras de Aço para Concreto
Armado



NBR 07480 1985 Barras e Fios de Aço Destinados a Armaduras para Concreto
Armado



NBR 07481 1989 Telas de Aço Soldados para Armadura de Concreto



NBR 07484 1991 Fios, Barras e Cordoalhas de Aço Destinados a Armaduras de
Protensão - Ensaio de Relaxação Isotérmica

Elaborado por:

Analisado por:

Professor :

Marcelo Gandra Falcone

Alessandra Aparecida Vieira

Marcelo Gandra Falcone

QUANDO IMPRESSO CONSIDERAR PIRATARIA - CÓPIA NÃO AUTORIZADA
UNINOVE

Engenharia de Avaliações e Perícias
Manutenção Predial e Avaliação de Máquinas
e Equipamentos



Rev. B
16/07/2011
Folha 380/424

NBR 08548 1984 Barras de Aço Destinadas a Armaduras para Concreto
Armado com Emenda Mecânica ou por Solda - Determinação da Resistência à
Tração



NBR 08965 1985 Barras de Aço CA 42S com Característica de Soldabilidade
Destinadas a Armaduras para Concreto Armado

8 AR CONDICIONADO


NBR 6401 Instalações de centrais de ar condicionado para conforto –
Parâmetros básicos de projeto



NBR 6675 02-jul-93 Instalação de condicionadores de ar de uso doméstico (tipo
monobloco ou modular)



NBR 10080 01-nov-87 Instalações de ar condicionado para salas de
computadores



NBR 11215 - 1990 - Equipamentos Unitários de Ar-Condicionado



NBR 14679 01-abr-01 Sistemas de condicionamento de ar e ventilação Execução de serviços de higienização

9 CÁLCULO ESTRUTURAL


NBR 06118 1978 Projeto e Execução de Obras de Concreto Armado



NBR 06119 1978 Cálculo e Execução de Lajes Mistas



NBR 06120 1978 Cargas para o Cálculo de Estruturas de Edificações



NBR 07188 1982 Carga Móvel em Ponte Rodoviária e Passarela de Pedestres



NBR 07189 1983 Cargas Móveis para Projeto Estrutural de Obras Ferroviárias



NBR 07190 1951 Cálculo e Execução de Estrutura de Madeira



NBR 07194 1971 Cálculo e Execução de Chaminés Industriais em Alvenaria e em
Concreto Armado

Elaborado por:

Analisado por:

Professor :

Marcelo Gandra Falcone

Alessandra Aparecida Vieira

Marcelo Gandra Falcone

QUANDO IMPRESSO CONSIDERAR PIRATARIA - CÓPIA NÃO AUTORIZADA
UNINOVE

Rev. B

Engenharia de Avaliações e Perícias
Manutenção Predial e Avaliação de Máquinas
e Equipamentos

16/07/2011
Folha 381/424



NBR 07808 1982 Símbolos Gráficos para Projeto de Estrutura



NBR 14762 1967 Cálculo de Estruturas de Aço Constituídas por Perfis Leves

10 CONCRETO


NBR 05627 1980 Exigências particulares das obras de concreto armado e
protendido em relação a resistência ao fogo



NBR 05628 1977 Componente Construtivo Estrutural - Determinação da
Resistência ao Fogo



NBR 05629 1975 Estrutura Ancorada no Terreno - Ancoragem Injetada no Terreno



NBR 05738 1994 Moldagem e Cura de Corpos-de-Prova Cilíndricos ou Prismáticos
de Concreto - Procedimento



NBR 05739 1974 Ensaio de Compressão de Corpos-de-prova Cilíndricos de
Concreto



NBR 05750 1972 Amostragem de Concreto Fresco Produzido por Betoneiras
Estacionárias



NBR 05916 1989 Junta de Tela Soldada para Armadura de Concreto - Ensaio de
Resistência ao Cisalhamento



NBR 06118 2003 Projeto de estruturas de concreto - Procedimento



NBR 07194 1982 Cálculo e execução de chaminés industriais em alvenaria e em
concreto armado



NBR 07212 1984 Execução de Concreto Dosado em Central



NBR 07223 1992 Concreto - Determinação da Consistência pelo Abatimento do
Tronco de Cone

Elaborado por:

Analisado por:

Professor :

Marcelo Gandra Falcone

Alessandra Aparecida Vieira

Marcelo Gandra Falcone

QUANDO IMPRESSO CONSIDERAR PIRATARIA - CÓPIA NÃO AUTORIZADA
UNINOVE

Engenharia de Avaliações e Perícias
Manutenção Predial e Avaliação de Máquinas
e Equipamentos



Rev. B
16/07/2011
Folha 382/424

NBR 07477 1982 Determinação do coeficiente de conformação superficial de barras
e fios de aço destinados a armaduras de concreto armado



NBR 07480 1996 Barras e fios de aço destinados a armaduras para concreto armado



NBR 07584 1982 Concreto Endurecido-Avaliação da Dureza Superficial pelo
Esclerômetro de Reflexão



NBR 07680 1981 Extração, Preparo, Ensaio e Análise de Testemunhos de
Estruturas de Concreto



NBR 08045 1983 Concreto - Determinação da Resistência Acelerada à Compressão
- Método da Água em Ebulição



NBR 08224 1983 Concreto Endurecido - Determinação da Fluência



NBR 08522 1983 Concreto - Determinação do Módulo de Deformação Estática e
Diagrama Tensão-deformação



NBR 08548 1984 Barras de aço destinadas a armaduras para concreto armado com
emenda mecânica ou por solda - Determinação da resistência à traço



NBR 08681 1984 Ações e Segurança nas Estruturas



NBR 08802 1984 Concreto Endurecido - Determinação da Velocidade de
Propagação de Onda Ultra-sônica



NBR 08804 1985 Perfil extrudado à base de elastômeros para juntas de estrutura de
concreto-determinação de características físicas, extração acelerada e efeito de
álcalis



NBR 08953 1992 Concreto para Fins Estruturais - Classificação por Grupos de
Resistência



NBR 08953 1992 Concreto para Fins Estruturais

Elaborado por:

Analisado por:

Professor :

Marcelo Gandra Falcone

Alessandra Aparecida Vieira

Marcelo Gandra Falcone

QUANDO IMPRESSO CONSIDERAR PIRATARIA - CÓPIA NÃO AUTORIZADA
UNINOVE

Engenharia de Avaliações e Perícias
Manutenção Predial e Avaliação de Máquinas
e Equipamentos



Rev. B
16/07/2011
Folha 383/424

NBR 08965 1985 Barras de aço CA 42 S com características de soldabilidade
destinadas a armaduras para concreto armado



NBR 09062 1985 Projeto e Execução de Estruturas de Concreto Pré-Moldado



NBR 09204 1985 Concreto Endurecido - Determinação da Resistividade Elétrica
Estacionárias



NBR 09605 1992 Concreto-Reconstituição do Traço de Concreto Fresco



NBR 09606 1986 Concreto - Determinação da Consistência pelo Espalhamento do
Tronco de Cone



NBR 09607 1987 Prova de carga em estruturas de concreto armado e protendido



NBR 09832 1992 Concreto e Argamassa - Determinação dos Tempos de Pega por
Meio da Resistência a Penetração



NBR 09833 1987 Concreto Fresco - Determinação da Massa Específica e do Teor
de Ar pelo Método Gravimétrico



NBR 10342 1987 Concreto Fresco - Perda de Abatimento



NBR 10786 1989 Concreto Endurecido - Determinação do Coeficiente de
Permeabilidade à Água



NBR 10787 1988 Concreto Endurecido - Determinação da Penetração de Água sob
Pressão



NBR 10839 1989 Execução de obras de arte especiais em concreto armado e
concreto protendido



NBR 11562 1990 Fabricação e Transporte de Concreto para Estruturas de Centrais
Nucleoelétricas

Elaborado por:

Analisado por:

Professor :

Marcelo Gandra Falcone

Alessandra Aparecida Vieira

Marcelo Gandra Falcone

QUANDO IMPRESSO CONSIDERAR PIRATARIA - CÓPIA NÃO AUTORIZADA
UNINOVE

Engenharia de Avaliações e Perícias
Manutenção Predial e Avaliação de Máquinas
e Equipamentos



Rev. B
16/07/2011
Folha 384/424

NBR 11686 1990 Concreto Fresco - Determinação do Teor de Ar pelo Método
Pressométrico



NBR 11919 1978 Barra para Concreto Armado-Verificação de Emendas Metálicas



NBR 12142 1994 Concreto - Determinação de Resistência à Tração na Flexão em
Corpos-de-Prova prismáticos



NBR 12646 1992 Paredes de Concreto Celular Espumoso Moldadas no Local Especificação



NBR 12654 1992 Controle Tecnológico de Materiais Componentes do Concreto



NBR 12655 1992 Preparo, Controle e Recebimento de Concreto - Procedimento



NBR 12815 1994 Concreto Endurecido - Determinação do Coeficiente de Dilatação
Térmica Linear - Método de Ensaio



NBR 12816 1994 Concreto Endurecido - Determinação da Capacidade de
Deformação de Concreto Submetido à Tração na Flexão - Método de Ensaio



NBR 12818 1994 Concreto - Determinação na Difusidade Térmica - Método de
Ensaio



NBR 12819 1994 Concreto e Argamassa - Dterminação da Elevação Adiabática da
Temperatura - Méotodo de Ensaio



NBR 12820 1994 Concreto - Endurecido - Determinação da Condutibilidade
Térmica - Método de Ensaio



NBR 12821 1994 Preparação de Concreto em Laboratório - Procedimento



NBR 13044 1994 Concreto Projetado - Reconstituição da Mistura Recém Projetada
- Método de Ensaio.

Elaborado por:

Analisado por:

Professor :

Marcelo Gandra Falcone

Alessandra Aparecida Vieira

Marcelo Gandra Falcone

QUANDO IMPRESSO CONSIDERAR PIRATARIA - CÓPIA NÃO AUTORIZADA
UNINOVE

Engenharia de Avaliações e Perícias
Manutenção Predial e Avaliação de Máquinas
e Equipamentos



Rev. B
16/07/2011
Folha 385/424

NBR 13069 1994 Concreto Projetado - Determinação dos termos de pega em pasta
de cimento portland,c/s a utilização de aditivo acelerador de pega - método de
ensaio



NBR 13070 1994 Moldagem de Placas para Ensaio de Argamassa e Concreto
Projetados - Procedimento



NBR 14931 2004 Execução de Estruturas de Concreto

11 CONCRETO PROTENDIDO


NBR 07197 1989 Projeto de Estruturas de Concreto Protendido



NBR 07482 1990 Fios de Aço para Concreto Protendido



NBR 07483 1990 Cordoalhas de Aço para Concreto Protendido



NBR 10788 1988 Execução da Injeção em Concreto Protendido com Aderência
Posterior



NBR 10789 1988 Execução da Protensão em Concreto Protendido com Aderência
Posterior



NBR 10839 1989 Execução de Obras de Arte Especiais em Concreto Armado e
Concreto Protendido

12 DESENHOS


NBR 06492 1994 Representação de projetos de Arquitetura



NBR 07191 1951 Execução de Desenhos para Obras de Concreto Simples ou
Armado



NBR 08196 1999 Desenho tecnico - Emprego de escalas



NBR 08403 1984 Desenho tecnico - aplicacao de linhas em desenhos

Elaborado por:

Analisado por:

Professor :

Marcelo Gandra Falcone

Alessandra Aparecida Vieira

Marcelo Gandra Falcone

QUANDO IMPRESSO CONSIDERAR PIRATARIA - CÓPIA NÃO AUTORIZADA
UNINOVE

Rev. B

Engenharia de Avaliações e Perícias
Manutenção Predial e Avaliação de Máquinas
e Equipamentos

16/07/2011
Folha 386/424



NBR 10067 1995 Princípios gerais de representação em desenho técnico



NBR 10068 1987 Folha de desenho lay-out e dimensões



NBR 10126 1987 Cotagem em Desenho Técnico



NBR 10582 1988 Apresentacao da folha para desenho tecnico



NBR 10647 1989 Desenho Técnico - Terminologia



NBR 12298 1995 Representação de área de corte por meio de hachuras em desenho
técnico



NBR 13142 1999 Desenho tecnico - Dobramento de copia



NBR 13531 1995 Elaboração de projetos e Edificações-Atividades técnicas



NBR 14611 2000 Desenho tecnico representacao de estruturas metalicas

13 DISTRIBUIÇÃO DE GLP / GN


NBR 8473
4kg/H



NBR 8613 - 1999



NBR 8614
- 1999 Válvulas automáticas para recipientes transportáveis para
2kg, 5kg e 13kg de GLP



NBR 13523 - Central predial de gás liquefeito de petróleo (GLP).



NBR 13794 – 1997 - Registro para recipientes transportáveis para 45kg e 90kg
de GLP



NBR 13932 - 1997 - Instalacoes internas de GLP



NBR 13933 - 1997 - Instalações Internas de Gás Natural (GN)



NBR 14024 - Centrais prediais e industriais de gás liquefeito de petróleo sistema de abastecimento a granel.



NBR 14536 – 2000 - Registros para recipientes transportáveis para 20kg de GLP

- 2001 Regulador de baixa pressão para GLP com capacidade ate

Mangueiras de PVC para instalações domesticas de GLP

Elaborado por:

Analisado por:

Professor :

Marcelo Gandra Falcone

Alessandra Aparecida Vieira

Marcelo Gandra Falcone

QUANDO IMPRESSO CONSIDERAR PIRATARIA - CÓPIA NÃO AUTORIZADA
UNINOVE

Rev. B

Engenharia de Avaliações e Perícias
Manutenção Predial e Avaliação de Máquinas
e Equipamentos

16/07/2011
Folha 387/424



NBR 15526 - Redes de distribuição interna para gases combustíveis em
instalações residenciais e comerciais - Projeto e execução



NBR 15358 - Redes de distribuição para gases combustíveis em instalações
comerciais e industriais - Projeto e execução

14 EDIFICAÇÕES


NBR 05675 1980 Recebimento de servicos de engenharia e arquitetura



NBR 05717 1982 Espaco modular para escadas



NBR 05719 1982 Revestimentos



NBR 05720 1982 coberturas



NBR 07678 1983 Segurança em obras



NBR 09050 2004 Acessibilidade a edificações, mobiliário, espaços e equipamentos
urbanos



NBR 09050 1994 Acessibilidade de pessoas portadoras de deficiências a
edificações, espaço, mobiliário e equipamento urbanos



NBR 12219 1992 Elaboração De Caderno De Encargos Para Execução De
Edificações



NBR 12721 2005 Avaliação de custos unitários e preparo de orçamento de
construção para incorporação de edifícios em condomínio - procedimento



NBR 12722 1992 Discriminação de Serviços para a Construção Civil



NBR 13532 1995 Elaboração de Projetos de edificações-Arquitetura



NBR 14645-1 2000 Elaboração do “como construído” (as built) para edificações



NBR 14718 2001 Guarda-corpo para edificação

Elaborado por:

Analisado por:

Professor :

Marcelo Gandra Falcone

Alessandra Aparecida Vieira

Marcelo Gandra Falcone

QUANDO IMPRESSO CONSIDERAR PIRATARIA - CÓPIA NÃO AUTORIZADA
UNINOVE

Rev. B

Engenharia de Avaliações e Perícias
Manutenção Predial e Avaliação de Máquinas
e Equipamentos

16/07/2011
Folha 388/424

15 EDITORAÇÃO CIENTÍFICA


NBR 06023 2002 Informação e documentação - Referências - Elaboração



NBR 06024 2002 Informação e documentação - Numeração progressiva das seções
de um documento escrito



NBR 06027 2003 Informação e documentação - Sumário



NBR 06028 2003 Informação e documentação - Resumo



NBR 06823 2002 Informação e documentação - Referências



NBR 10520 2002 Informação e documentação - Citações em documentos



NBR 10719 1989 Apresentação de relatórios técnico-científicos: Procedimento



NBR 14724 2002 Informação e documentação - Trabalhos Academicos



NBR 15287 2005 Informação e documentação - Projeto de pesquisa: Apresentação

16 ELÉTRICA


NBR 5354 Requisitos gerais para material de instalações elétricas



NBR 5382 Verificação de iluminância de interiores



NBR 5410 Instalações elétricas de baixa tensão



NBR 5413 Iluminância de Interiores



NBR 5419 Proteção de estruturas contra descargas atmosféricas



NBR 5444 Símbolos gráficos para instalações elétricas prediais



NBR 5456 Eletricidade geral – Terminologia



NBR 5461 Iluminação



NBR 6146 - 1980 - Invólucro de equipamentos elétricos



NBR 8222 - 1983 - Proteção Contra Incêndio Em Transformadores

Elaborado por:

Analisado por:

Professor :

Marcelo Gandra Falcone

Alessandra Aparecida Vieira

Marcelo Gandra Falcone

QUANDO IMPRESSO CONSIDERAR PIRATARIA - CÓPIA NÃO AUTORIZADA
UNINOVE

Rev. B

Engenharia de Avaliações e Perícias
Manutenção Predial e Avaliação de Máquinas
e Equipamentos

16/07/2011
Folha 389/424



NBR 8837 Iluminação esportiva



NBR 12523 Símbolos gráficos de equipamentos de manobra e controle e de
dispositivos de proteção



NBR 13418 01--1995 Cabos resistentes ao fogo para instalações de segurança



NBR 13534 01- 1995 Instalações elétricas em estabelecimentos assistenciais de
saúde – Requisitos para segurança



NBR 13570 Instalações elétricas em locais de afluência de público – requisitos
específicos



NBR 13571 01- 1996 Haste de aterramento aço-cobreada e acessórios



NBR 13859 - 1997 - Protecao contra incendio em subestacoes e



NBR 14039 31- 2005 Instalações elétricas de média tensão de 1,0 kV a 36,2 kV

17 ELEVADORES


NBR 5665 Cálculo de tráfego nos elevadores – procedimento



NBR 10098/87 – PB670 – Elevadores elétricos – Dimensões e condições do
projeto de construção



NBR 10982/90 – PB1448 – Elevadores elétricos – Dispositivos de operação e
sinalização



NBR 12892/93 – Projeto, fabricação e instalação de elevador unifamiliar.



NBR 13994/00 – Elevadores de passageiros – elevadores para transporte de
pessoa com deficiência.



NBR NM 196 - 1999 - Elevadores de passageiros e monta-cargas



NBR NM 207 - 1999 - Elevadores eletricos de passageiros - Re



NBR NM 267 - 2002 - Elevadores Hidraulicos De Passageiros -



NBR NM 272 - 2002 - Seguranca de Maquinas - Protecoes - Req

Elaborado por:

Analisado por:

Professor :

Marcelo Gandra Falcone

Alessandra Aparecida Vieira

Marcelo Gandra Falcone

QUANDO IMPRESSO CONSIDERAR PIRATARIA - CÓPIA NÃO AUTORIZADA
UNINOVE

Rev. B

Engenharia de Avaliações e Perícias
Manutenção Predial e Avaliação de Máquinas
e Equipamentos

16/07/2011
Folha 390/424

18 EQUIPAMENTO URBANO


NBR 9283 Mobiliário urbano – classificação



NBR 9284 Equipamento urbano – classificação

19 ESGOTO


NBR 07229 1993 Projeto, construção e operação de sistemas de tanques sépticos



NBR 08160 1999 Sistemas prediais de esgoto sanitário - Projeto e execução



NBR 09649 1986 Projeto De Redes De Esgoto sanitário



NBR 10844 1989 Instalacoes Prediais De Aguas Pluviais

20 ESTADIOS / GINÁSIOS ESPORTIVOS


NBR 8837 Iluminação esportiva



NBR15476 Móveis plásticos - Assentos plásticos para estádios desportivos e
lugares públicos não cobertos

21 ESTRUTURAS DE AÇO


NBR 05008 1981 Chapas Grossas de Aço de Baixa Liga e Alta Resistência
Mecânica, Resistentes à Corrosão Atmosférica, para Usos Estruturais



NBR 05920 1988 Chapas Finas a Frio de Aço de Baixa Liga, Alta Resistência
Mecânica e Resistência a Corrosão Atmosférica, para Usos Estruturais



NBR 06648 1984 Chapas Grossas de Aço-carbono para Uso Estrutural



NBR 06649 1986 Chapas Finas a Frio de Aço-carbono para Uso Estrutural



NBR 06650 1986 Chapas Finas a Quente de Aço-carbono para Uso Estrutural



NBR 06657 1979 Perfil de Estruturas Soldadas de Aço

Elaborado por:

Analisado por:

Professor :

Marcelo Gandra Falcone

Alessandra Aparecida Vieira

Marcelo Gandra Falcone

QUANDO IMPRESSO CONSIDERAR PIRATARIA - CÓPIA NÃO AUTORIZADA
UNINOVE

Rev. B

Engenharia de Avaliações e Perícias
Manutenção Predial e Avaliação de Máquinas
e Equipamentos

16/07/2011
Folha 391/424



NBR 07007 1981 Aços para Perfis Laminados para Uso Estrutural



NBR 08261 1983 Perfil Tubular, de Aço-Carbono, Formato a Frio, com e sem
Costura, de Seção Circular, Quadrada ou Retangular para Usos Estruturais



NBR 08800 1986 Projeto e execução de estruturas de aço de edifícios (Método dos
estados limites)



NBR 09608 1986 Aços para construção - Série padronizada



NBR 09763 1986 Aços para Perfis Laminados, Chapas Grossas e Barras, Usados
em Estruturas Fixas



NBR 09971 1987 Elementos de fixação dos componentes das estruturas metálicas



NBR 11851 1991 Chapas de Aço Acalmado de Alta Resistência Mecânica com
Requisitos de Tenacidade, para Estruturas soldadas



NBR 12624 1992 Perfil de Elastômero Vulcanizado, Extrudado para Vedação de
Junta de Dilatação de Estruturas de Concreto ou Aço - Especificação



NBR 14323 1999 Dimensionamento de estrururas de aço e mistas em edificaçoes
em risco de incendio

22 FUNDAÇÕES


NBR 09061 1985 Segurança de escavação a céu aberto



NBR 06122 1996 Projeto e execução de fundações



NBR 06484 2001 Solo - sondagens de simples reconhecimento com SPT - método
de ensaio



NBR 08036 1983 Programação de sondagens de simples reconhecimento dos solos
para fundações de edifícios



NBR 11682 2006 Estabilidade de encostas

Elaborado por:

Analisado por:

Professor :

Marcelo Gandra Falcone

Alessandra Aparecida Vieira

Marcelo Gandra Falcone

QUANDO IMPRESSO CONSIDERAR PIRATARIA - CÓPIA NÃO AUTORIZADA
UNINOVE

Rev. B

Engenharia de Avaliações e Perícias
Manutenção Predial e Avaliação de Máquinas
e Equipamentos

16/07/2011
Folha 392/424



NBR 12131 2005 Estacas – Prova de carga estática – Método de ensaio



NBR 13208 2006 Estacas – Ensaio de carregamento dinâmico

23 GÁS


NBR 12727 1993 Medidor de gás tipo diafragma, para instalações residenciais Dimensões



NBR 13103 2000 Adequação de ambientes residenciais para instalação de aparelhos
que utilizam gás combustível



NBR 13127 1994 Medidor de gás tipo diafragma, para instalações residenciais



NBR 13206 1994 Tubo de cobre leve, médio e pesado sem costura, para condução
de água e outros fluidos



NBR 13523 1995 Central predial de Gás Liquefeito de petróleo (GLP) - Projeto e
execução



NBR 13932 1997 Instalações internas de gás liquefeito de petróleo (GLP) - Projeto
e execução



NBR 13933 1997 Instalações internas de gás natural (GN) - Projeto e execução

24 HIDRÁULICA


NBR 05626 1998 Instalação Predial de Água Fria



NBR 07198 1993 Projeto e execução de instalações prediais de água quente

25 IMPERMEABILIZAÇÃO


NBR 0803 1983 Materiais e Sistemas utilizados em impermeabilização terminologia

Elaborado por:

Analisado por:

Professor :

Marcelo Gandra Falcone

Alessandra Aparecida Vieira

Marcelo Gandra Falcone

QUANDO IMPRESSO CONSIDERAR PIRATARIA - CÓPIA NÃO AUTORIZADA
UNINOVE

Rev. B

Engenharia de Avaliações e Perícias
Manutenção Predial e Avaliação de Máquinas
e Equipamentos

16/07/2011



NBR 09574 1996 Execução de Impermeabilização



NBR 09575 1998 Elaboração de Projetos de Impermeabilização



Folha 393/424

NBR 09686 2006 Solução asfáltica empregada como imprimação da
impermeabilização



NBR 09689 1986 Materiais e sistemas para impermeabilização- Classificação



NBR 09690 NBR 09952 2007 Manta asfáltica com armadura para
impermeabilização- Requisitos e métodos de ensaio



NBR 12190 2001 Seleção da Impermeabilização

26 INSPEÇÃO E MANUTENÇÃO PREDIAL


MB-130 1955 Inspeção periódica de elevadores e monta-cargas



NBR 10821 2000 Caixilho para Edificação – Janela



NBR 05419 2001 Proteção de estruturas contra descargas atmosféricas



NBR 05580 1993 Tubos de aço-carbono para rosca Whitworth gás para usos
comuns na condução de fluidos



NBR 05583 1982 Tubo de aço de baixo carbono, sem costura, trefilado a frio, para
permutadores de calor



NBR 05674 1999 Manutenção de edificações - Procedimento



NBR 06414 2000 Rosca para tubos onde a vedação e feita pela rosca - Designação,
dimensões e tolerâncias



NBR 06493 1994 Emprego de cores para identificação de tubulações



NBR 06675 1993 Instalação de condicionadores de ar de uso doméstico (tipo
monobloco ou modular)

Elaborado por:

Analisado por:

Professor :

Marcelo Gandra Falcone

Alessandra Aparecida Vieira

Marcelo Gandra Falcone

QUANDO IMPRESSO CONSIDERAR PIRATARIA - CÓPIA NÃO AUTORIZADA
UNINOVE

Engenharia de Avaliações e Perícias
Manutenção Predial e Avaliação de Máquinas
e Equipamentos



Rev. B
16/07/2011
Folha 394/424

NBR 06925 1995 Conexão de ferro fundido maleável classes 150 e 300, com rosca
NPT para tubulação



NBR 06943 2000 Conexões de ferro fundido maleável, com rosca NBR NM-ISO 71, para tubulações



NBR 07200 1998 Execução de revestimento de paredes e tetos de argamassas
inorgânicas - Procedimento



NBR 07202 2000 Desempenho de janelas de alumínio em edificação de uso
residencial e comercial



NBR 07532 2000 Identificadores de extintores de incêndio - Dimensões e cores



NBR 07541 1982 Tubo de cobre sem costura para refrigeração e ar condicionado



NBR 09050 1994 Acessibilidade de pessoas portadoras de deficiências a
edificações, espaço, mobiliário e equipamento urbanos



NBR 09077 2001 Saidas de emergencia em edificios



NBR 10818 1989 Qualidade de Água de Piscina



NBR 10829 1989 Caixilho para edificação - janela - Medição da atenuação acústica



NBR 10831 1989 Projeto e utilização de caixilhos para edificações de uso
residencial e comercial - Janelas



NBR 11173 1990 Projeto e Execução de Argamassa Armada



NBR 11720 1994 Conexões para unir tubos de cobre por soldagem ou brasagem
capilar



NBR 12179 1992 Tratamento acústico em recintos fechados



NBR 12912 1993 Rosca NPT para Tubos – Dimensões

Elaborado por:

Analisado por:

Professor :

Marcelo Gandra Falcone

Alessandra Aparecida Vieira

Marcelo Gandra Falcone

QUANDO IMPRESSO CONSIDERAR PIRATARIA - CÓPIA NÃO AUTORIZADA
UNINOVE

Engenharia de Avaliações e Perícias
Manutenção Predial e Avaliação de Máquinas
e Equipamentos



Rev. B
16/07/2011
Folha 395/424

NBR 13971 1986 Sistemas de Refrigeração, Condicionamento de Ar e Ventilação –
Manutenção Programada



NBR 14024 1997 Centrais prediais e industriais de gás liquefeito de petróleo (GLP)
– Sistema de abastecimento a granel



NBR 14037 1998 Manual de Operação Uso e Manutenção das Edificações



NBR 14712 Elevadores Elétricos – Elevadores de carga, monta cargas e elevadores
de marca – Requisitos de segurança para projeto, fabricação e instalação



NBR 14718 Guarda-corpo para edificação

27 MANUTENÇÃO


NBR 5674 01-set-99 Manutenção de edificações Procedimento



NBR 14037 01-mar-98 Manual de operação, uso e manutenção das edificações Conteúdo e recomendações para elaboração e apresentação

28 PERÍCIAS EM ENGENHARIA CIVIL


NBR 13752 1996 Perícias de engenharia na construção civil



NBR 10719 1989 Apresentação de relatórios técnicos

29 PLAYGROUND / CIRCOS E PARQUES


NBR 14350-1 - 1999 Segurança de brinquedos de playground - Parte 1: Requisitos e
métodos de ensaio

30 PONTES


NBR-07187 1986 Projeto e Execução de Pontes de Concreto Armado e Protendido



NBR-07421 1976 Ponte Viaduto Ferroviário-Fundação-Execução



NBR-09452 1986 Vistorias de Pontes e Viadutos de Concreto

Elaborado por:

Analisado por:

Professor :

Marcelo Gandra Falcone

Alessandra Aparecida Vieira

Marcelo Gandra Falcone

QUANDO IMPRESSO CONSIDERAR PIRATARIA - CÓPIA NÃO AUTORIZADA
UNINOVE

Rev. B

Engenharia de Avaliações e Perícias
Manutenção Predial e Avaliação de Máquinas
e Equipamentos

16/07/2011
Folha 396/424

31 PORTA


NBR 8037 01-jun-83 Porta de madeira de edificação



NBR 8052 Porta de madeira de edificações – Dimensões - Padronização



NBR 8542 01-set-86 Desempenho de porta de madeira de edificação

32 SEGURANÇA CONTRA INCÊNDIO


NBR 5419 Proteção de estruturas contra descargas atmosféricas



NBR 6135 - 1992 Chuveiros automáticos para extinção de incêndio Especificação



NBR 6479 - 1992 Portas e vedadores Determinação da resistência ao fogo



NBR 7195 Cores para segurança



NBR 7679 Termos básicos relativos à cor – terminologia



NBR 8681 Ações e segurança nas estruturas – procedimento



NBR 9077 Saídas de emergência em edifícios

 NBR 17240 - 10 Execução de sistemas de detecção e alarme de incêndio
Procedimento


NBR 10898 Sistema de Iluminação de emergência



NBR 11742 Porta corta-fogo para saída de emergência – especificação



NBR 11785 Barra Antipânico – Requisitos



NBR 11836 Detectores de automáticos de fumaça para proteção contra incêndio



NBR 12615 Sistema de combate a incêndio por espuma - procedimento



NBR 12693 Sistemas de proteção por extintores de incêndio – procedimento

 NBR 13434-1 - 2004 Sinalização de segurança contra incêndio e pânico - Parte 1:
Princípios de projeto
 NBR 13434-2 – 2004 - Sinalização de segurança contra incêndio e pânico - Parte 2:
Símbolos e suas formas, dimensões e cores
Elaborado por:

Analisado por:

Professor :

Marcelo Gandra Falcone

Alessandra Aparecida Vieira

Marcelo Gandra Falcone

QUANDO IMPRESSO CONSIDERAR PIRATARIA - CÓPIA NÃO AUTORIZADA
UNINOVE

Rev. B

Engenharia de Avaliações e Perícias
Manutenção Predial e Avaliação de Máquinas
e Equipamentos

16/07/2011
Folha 397/424

 NBR 13434-3 – 2005 - Sinalização de segurança contra incêndio e pânico - Parte 3:
Requisitos e métodos de ensaio


NBR 13714 Sistemas de hidrantes e de mangotinhos para combate a incêndio

 NBR 13768 01- 1997 Acessórios destinados à porta corta-fogo para saída de
emergência – Requisitos
 NBR 13792 Proteção contra incêndio por sistema de chuveiros automáticos para
áreas de armazenamento em geral – procedimento
 NBR 13848 Acionador manual para utilização em sistemas de detecção e alarme de
incêndio


NBR 14100 Proteção contra incêndio – símbolos gráficos para projetos

 NBR 14432 Exigências de resistência ao fogo de elementos construtivos de
edificações - procedimento


NBR 14718 01 - 2001 Guarda-corpos para edificação

 NBR 14880 Saídas de emergência em edifícios- escadas de segurança – controle de
fumaça por pressurização
33 SCI - EQUIPAMENTOS / MATERIAIS / SINALIZAÇÃO DE COMBATE A
INCÊNDIO


NBR 05667 - 1980 - Hidrantes Urbanos de Incêndio



NBR 05719 - 1982 - Nb 343 - Revestimentos



NBR 06125 - 1992 - chuveiros automaticos para extincao de in



NBR 06135 - 1992 - Chuveiros Automáticos para Extinção de In



NBR 06493 - 1994 - Emprego de cores para identificação de tubulações



NBR 07195 - 1995 - Cores para segurança



NBR 07532 - 1982 - PB 956 - Identificadores de extintores de



NBR 08655 - 1990 - Po para extincao de incendio - Determinac



NBR 08657 - 2003 - Po para extincao de incendio - Determinac

Elaborado por:

Analisado por:

Professor :

Marcelo Gandra Falcone

Alessandra Aparecida Vieira

Marcelo Gandra Falcone

QUANDO IMPRESSO CONSIDERAR PIRATARIA - CÓPIA NÃO AUTORIZADA
UNINOVE

Rev. B

Engenharia de Avaliações e Perícias
Manutenção Predial e Avaliação de Máquinas
e Equipamentos

16/07/2011



NBR 08660 - 1984 - Revestimento_De_Piso_



NBR 08674 - 1984 - Execução de Sistemas Fixos Automáticosd



NBR 08681 - 2003 - NB 862 - Ações e segurança nas estruturas



NBR 09443 - 2002 - Extintor de incendio classe A - Ensaio de



NBR 09444 - 2002 - Extintor de incendio classe B - Ensaio de



NBR 09654 - 1997 - Indicador de pressao para extintores de i



NBR 09694 - 1992 - Po para extincao de incendio - Verificação



NBR 09695 - 2003 - Pó para Extinção de Incêndio



NBR 09696 - 1992 - Po para extincao de incendio - Analise gr



NBR 09715 - 1987 - Mangueira de Incêndio para Uso Naval



NBR 09077 - 2001 - Saidas de emergencia em edificios



NBR 17240 - 2010 - Execução de Sistemas de Detecção e Alarme



NBR 09442 - 1986 - Determinacao_do_indice_de_propagacao_supe



NBR 10636 - 1989 - Paredes divisórias - Resistencia contra f



NBR 10721 - 2005 - Extintores de Incêndio com Carga de Pó



NBR 10830 - 1989 - Tb 355 - Caixilho Para Edificacao - Acust



NBR 10866 - 1989 - Portas classe A e B construcao naval Ensa



NBR 10897 - 2004 - Proteção Contra Incêndio por Chuveiro Aut



NBR 10898 - 1999 - Sistema de Iluminação de Emergência



NBR 11711 - 2003 - Portas e Vedadores Corta-fogo com Núcleo



NBR 11715 - 2003 - Extintores de Incêndio com Carga de Água



Folha 398/424

NBR 11716 - 2004 - Extintores de Incêndio com Carga de CO2

Elaborado por:

Analisado por:

Professor :

Marcelo Gandra Falcone

Alessandra Aparecida Vieira

Marcelo Gandra Falcone

QUANDO IMPRESSO CONSIDERAR PIRATARIA - CÓPIA NÃO AUTORIZADA
UNINOVE

Rev. B

Engenharia de Avaliações e Perícias
Manutenção Predial e Avaliação de Máquinas
e Equipamentos

16/07/2011
Folha 399/424



NBR 11742 - 2003 - Porta corta-fogo para saida de emergencia



NBR 11742 - 2003 - Porta Corta-Fogo Para Saída De Emergência



NBR 11742 - 2003 - Artigo simcol -EB 132 GB 920 - Porta corta-fogo



NBR 11751 - 2003 - Extintor de Incêndio com Carga para Espum



NBR 11762 - 2001 - Extintores de Incêndio Portateis com Carg



NBR 11836 - 1992 - Detectores Automaticos De Fumaca Para Pro



NBR 11861 - 1998 - Mangueiras de incendio



NBR 11983 - 1990 - Po para extincao de incendio - Determinac



NBR 11986 - 2003 - Po Para Extincao De Incendio - Determinac



NBR 11989 - 2003 - Po para extincao de incendio - Determinac



NBR 12178 - 1992 - Dispositivos de Segurança no Recipiente d



NBR 12252 - 1992 - NB 1329 - Tatica de salvamento e combate



NBR 12285 - 1992 - NB 1369 - Protecao contra incendio em dep



NBR 12313 - 2000 - NB 1397 - Sistema de Combustao - Controle



NBR 12517 - 1993 - Simbolos Graficos para Projetos de Contro



NBR 12615 - 1992 - NB 966 - Sistema de combate a incendio po



NBR 12693 - 1993 - Sistemas de protecao por extintores de in



NBR 12694 - 1992 - Especificacao De Cores De Acordo Com O Si



NBR 12710 - 2001 - Protecao contra incendio por extintores n



NBR 12779 - 2004 - Inspecao Manutencao E Cuidados Em Manguei



NBR 12779 - 2004 - Mangueiras incendio Inspecao Manutencao c



NBR 12921 - 1993 - Veiculo Ferroviario - Prevencao contra in



NBR 12962 - 1998 - Inspeção, Manutenção e Recarga em Extinto

Elaborado por:

Analisado por:

Professor :

Marcelo Gandra Falcone

Alessandra Aparecida Vieira

Marcelo Gandra Falcone

QUANDO IMPRESSO CONSIDERAR PIRATARIA - CÓPIA NÃO AUTORIZADA
UNINOVE

Rev. B

Engenharia de Avaliações e Perícias
Manutenção Predial e Avaliação de Máquinas
e Equipamentos

16/07/2011



NBR 12992 - 1993 - Extintor de incendio classe C - Ensaio de



NBR 13418 - 1995 - Cabos Resistentes Ao Fogo Para Instalacoe



NBR 13419 - 2001 - Mangueira de borracha para conducao de ga



NBR 13428 - 1995 - Mangueira De Borracha Para Conducao De Ga



NBR 13434 - 1995 - Sinalizacao de seguranca contra incendio



NBR 13434-1 - 2004 - Sinalização de segurança contra incêndi



NBR 13434-2 - 2004 - Simbolos de sinalizacao de seguranca co



NBR 13435 - 1995 - Sinalizacao De Seguranca Contra Incendio



NBR 13437 - 1995 - Simbolos graficos para sinalizacao contra



NBR 13485 - 1998 - Manutencao De Terceiro Nivel (Vistoria) E



NBR 13697 - 1996 - Equipamentos De Proteção Respiratória - F



NBR 13714 - 2000 - Sistemas de Hidrantes e de Mangotinhos pa



NBR 13768 - 1997 - Porta Corta-Fogo de Emergência



NBR 13792 - 1997 - Protecao contra incendio por sistema de c



NBR 13848 - 1997 - Acionador manual para utilizacao em siste



NBR 13860 - 1997 - Glossario De Termos Relacionados Com A Se



NBR 13902 - 1997 - Vagao de combate a incendio - Equipamento



NBR 14023 - 1997 - Registro de atividades de bombeiros



NBR 14096 - 1998 - Viaturas de combate a incendio



NBR 14100 - 1998 - Protecao Contra Incendio - Simbolos Grafi



NBR 14276 - 1999 - Programa de Brigada de Incêndio



Folha 400/424

NBR 14277 - 1999 - Campo para treinamento de combate a incên

Elaborado por:

Analisado por:

Professor :

Marcelo Gandra Falcone

Alessandra Aparecida Vieira

Marcelo Gandra Falcone

QUANDO IMPRESSO CONSIDERAR PIRATARIA - CÓPIA NÃO AUTORIZADA
UNINOVE

Rev. B

Engenharia de Avaliações e Perícias
Manutenção Predial e Avaliação de Máquinas
e Equipamentos

16/07/2011



NBR 14323 - 2003 - Estruturas de Aço e Aço-Concreto em Situa



NBR 14432 - 2001 - Exigencias De Resistencia Ao Fogo De Elem



NBR 14608 - 2000 - Bombeiro Profissional Civil



Folha 401/424

NBR 14870 - 2002 - Esguichos de jato regulavel para combate

34 TANQUES E BOMBAS


NBR 13212 - 2004 - Posto de Serviço - Tanque Atmosférico Sub



NBR 13313 - 2003 - Tanque atmosferico subterraneo em postos aço



NBR 14024 - Centrais prediais e industriais de gás liquefeito de petróleo - sistema
de abastecimento a granel.



NBR 13781 - 2001 - Posto de servico - Manuseio e instalacao



NBR 13785 - 2003 - Construcao De Tanque Atmosferico Subterrâneo duplo



NBR 13786 - 2005 - Posto De Servico - Selecao De Equipamento



NBR 13787 - 1997 - Controle De Estoque Dos Sistemas De Armazenamento



NBR 14536 – 2000 - Registros para recipientes transportáveis para 20kg de GLP



NBR 14639 - 2001 - Posto De Serviço - Instalações Elétricas



NBR 15526 - Redes de distribuição interna para gases combustíveis em instalações
residenciais e comerciais - Projeto e execução



NBR 15358 - Redes de distribuição para gases combustíveis em instalações
comerciais e industriais - Projeto e execução



NBR 17505-1_6 - 2006 - Completa - Armazenamento em tanques



NBR 17505-1-2006 - Armazenamento de Liquidos inflamáveis e combustíveis



NBR 17505-2-2006 - Armazenamento em tanques e em vasos



NBR 17505-3-2006 - Armazenamento em tanques e em vasos



NBR 17505-4-2006 - Armazenamento em tanques e em vasos

Elaborado por:

Analisado por:

Professor :

Marcelo Gandra Falcone

Alessandra Aparecida Vieira

Marcelo Gandra Falcone

QUANDO IMPRESSO CONSIDERAR PIRATARIA - CÓPIA NÃO AUTORIZADA
UNINOVE

Rev. B

Engenharia de Avaliações e Perícias
Manutenção Predial e Avaliação de Máquinas
e Equipamentos

16/07/2011



NBR 17505-5-2006 - Armazenamento em tanques e em vasos



Folha 402/424

NBR 17505-6-2006 - Armazenamento em tanques e em vasos

35 TELEFONES



NBR 14565 2000 Procedimento básico para elaboração de projetos de cabeamento
de telecomunicações para rede interna estruturada
NBR 13300 1995 Redes telefônicas internas em prédios

36 VENTO


NBR 06123 1987 Forças Devidas ao Vento em Edificações

Elaborado por:

Analisado por:

Professor :

Marcelo Gandra Falcone

Alessandra Aparecida Vieira

Marcelo Gandra Falcone

QUANDO IMPRESSO CONSIDERAR PIRATARIA - CÓPIA NÃO AUTORIZADA
UNINOVE

Rev. B

Engenharia de Avaliações e Perícias
Manutenção Predial e Avaliação de Máquinas
e Equipamentos

16/07/2011
Folha 403/424

APENDICE 3 - CORPO DE BOMBEIROS
Instruções técnicas do Corpo de Bombeiros da Polícia Militar do Estado de São
Paulo referentes à segurança contra incêndio.

1 – Instruções técnicas.
- DECRETO Nº 46.076, DE 31 DE AGOSTO DE 2001. Institui o Regulamento de
Segurança contra Incêndio das edificações e áreas de risco para os fins da Lei nº 684,
de 30 de setembro de 1975 e estabelece outras providências
- Lei Nº 10.318, de 27 de maio de 1999
(Projeto de lei nº 360/97, do Deputado Reynaldo de Barros Filho - PPB)
Obriga a divulgação e aplicação de condições mínimas de segurança em locais de
reunião e dá outras providências
As IT´s devem ser consultadas no “SITE” de “INTERNET” do Corpo de Bombeiros da
Policia Militar do Estado de São Paulo:
http://www.ccb.polmil.sp.gov.br/its/instrucao_tec.htm
2. Relação das instruções técnicas.
2.1. INSTRUÇÃO TÉCNICA Nº 01 - Procedimentos
Administrativos:(formulários, atestados, etc.)
2.2. INSTRUÇÃO TÉCNICA Nº 02 - Conceitos básicos de segurança contra
incêndio
2.3. INSTRUÇÃO TÉCNICA Nº 03 - Terminologia de segurança contra
incêndio
2.4. INSTRUÇÃO TÉCNICA Nº 04 - Símbolos gráficos para projeto de
segurança contra incêndio
2.5. INSTRUÇÃO TÉCNICA Nº 05 - Segurança contra incêndio – urbanística
2.6. INSTRUÇÃO TÉCNICA Nº 06 – Acesso de viatura na edificação e área de
risco
2.7. INSTRUÇÃO TÉCNICA Nº 07 – Separação entre edificações
2.8. INSTRUÇÃO TÉCNICA Nº 08 – Segurança estrutural nas edificações
(resistência ao fogo dos elementos de construção)

Elaborado por:

Analisado por:

Professor :

Marcelo Gandra Falcone

Alessandra Aparecida Vieira

Marcelo Gandra Falcone

QUANDO IMPRESSO CONSIDERAR PIRATARIA - CÓPIA NÃO AUTORIZADA
UNINOVE

Rev. B

Engenharia de Avaliações e Perícias
Manutenção Predial e Avaliação de Máquinas
e Equipamentos

16/07/2011
Folha 404/424

2.9. INSTRUÇÃO TÉCNICA Nº 09 – Compartimentação horizontal e
compartimentação vertical
2.10.
INSTRUÇÃO TÉCNICA Nº 10 – Controle de materiais de
acabamento e revestimento
2.11.

*INSTRUÇÃO TÉCNICA Nº 11 – Saídas de emergência

2.12.
*INSTRUÇÃO TÉCNICA Nº 12 – Dimensionamento de lotação e
saídas de emergência em centros esportivos e de exibição
2.13.
INSTRUÇÃO TÉCNICA Nº 13 – Pressurização de escada de
segurança
2.14.
INSTRUÇÃO TÉCNICA Nº 14 – Carga de incêndio nas edificações e
áreas de risco
2.15.

INSTRUÇÃO TÉCNICA Nº 15 – Controle de fumaça

2.16.

INSTRUÇÃO TÉCNICA Nº 16 – Plano de intervenção de incêndio

2.17.

*INSTRUÇÃO TÉCNICA Nº 17 – Brigada de incêndio

2.18.

INSTRUÇÃO TÉCNICA Nº 18 – Iluminação de emergência

2.19.
INSTRUÇÃO TÉCNICA Nº 19 – Sistemas de detecção e alarme de
incêndio
2.20.

INSTRUÇÃO TÉCNICA Nº 20 – Sinalização de emergência

2.21.
*INSTRUÇÃO TÉCNICA Nº 21 – Sistema de proteção por
extintores de incêndio
2.22.
INSTRUÇÃO TÉCNICA Nº 22 – Sistema de hidrantes e de
mangotinhos para combate a incêndio
2.23.
INSTRUÇÃO TÉCNICA Nº 23 – Sistema de chuveiros automáticos
2.24.

INSTRUÇÃO TÉCNICA Nº 25 – Sistema de proteção por espuma

2.25.
INSTRUÇÃO TÉCNICA Nº 26 – Sistema fixo de gases para combate
a incêndio
2.26.
INSTRUÇÃO TÉCNICA Nº 27 – Armazenagem de líquidos
inflamáveis e combustíveis
2.27.
INSTRUÇÃO TÉCNICA Nº 28 – Manipulação, armazenamento,
comercialização e utilização de gás liquefeito de petróleo (GLP)
Elaborado por:

Analisado por:

Professor :

Marcelo Gandra Falcone

Alessandra Aparecida Vieira

Marcelo Gandra Falcone

QUANDO IMPRESSO CONSIDERAR PIRATARIA - CÓPIA NÃO AUTORIZADA
UNINOVE

Rev. B

Engenharia de Avaliações e Perícias
Manutenção Predial e Avaliação de Máquinas
e Equipamentos

16/07/2011
Folha 405/424

2.28.
INSTRUÇÃO TÉCNICA Nº 29 – Comercialização, distribuição e
utilização de gás natural
2.29.

INSTRUÇÃO TÉCNICA Nº 30 - Fogos de artifício

2.30.

INSTRUÇÃO TÉCNICA Nº 31 - Heliponto e heliporto

2.31.
INSTRUÇÃO TÉCNICA Nº 32 - Produtos perigosos em edificação e
área de risco
2.32.
INSTRUÇÃO TÉCNICA Nº 33 - Cobertura de sapé, piaçava e
similares
2.33.

INSTRUÇÃO TÉCNICA Nº 34 - Hidrante urbano

2.34.

INSTRUÇÃO TÉCNICA Nº 37 - Subestações elétrica

2.35.
INSTRUÇÃO TÉCNICA Nº 38 - Segurança contra incêndio em
cozinha profissional

Elaborado por:

Analisado por:

Professor :

Marcelo Gandra Falcone

Alessandra Aparecida Vieira

Marcelo Gandra Falcone

QUANDO IMPRESSO CONSIDERAR PIRATARIA - CÓPIA NÃO AUTORIZADA
UNINOVE

Rev. B

Engenharia de Avaliações e Perícias
Manutenção Predial e Avaliação de Máquinas
e Equipamentos

16/07/2011
Folha 406/424

APENDICE 4 – NR´s DO MTE
NR-1 - DISPOSIÇÕES GERAIS
As NR são de observância obrigatória pelas empresas privadas e públicas e pelos órgãos
públicos de administração direta e indireta, que possuam empregados regidos pela
Consolidação das Leis do Trabalho - CLT. Importância e funções do S S S T Funções e
competência da D R T.
NR-2 - INSPEÇÃO PRÉVIA
Todo estabelecimento novo, antes de iniciar suas atividades, deverá solicitar aprovação de suas
instalações ao Órgão do Ministério do Trabalho.
NR-3 - EMBARGO E INTERDIÇÃO
A D R T ou D T M, conforme o caso, à vista de laudo técnico do serviço competente que
demonstre grave e iminente risco para o trabalhador, poderá interditar estabelecimento, setor
de serviço, máquina ou equipamento, ou embargar a obra.
NR-4 - SERVIÇO ESPECIALIZADO
Empresas privadas ou públicas, que possuam empregados regidos pela CLT, manterão
obrigatoriamente Serviços Especializados em Engenharia de Segurança e em Medicina do
Trabalho, com a finalidade de promover a saúde e proteger a integridade do trabalhador no
local de trabalho, vinculados à graduação do risco da atividade principal e do número total de
empregados do estabelecimento.
NR-5 - Comissão Interna de Prevenção de Acidentes
As empresas privadas, públicas e órgãos governamentais que possuam empregados regidos
pela CLT ficam obrigados a organizar e manter em funcionamento, por estabelecimento, uma
Comissão Interna de Prevenção de Acidentes - CIPA.
NR-6 - EQUIPAMENTOS DE PROTEÇÃO INDIVIDUAL
Para os fins de aplicação desta NR, considera-se EPI todo dispositivo de uso individual, de
fabricação nacional ou estrangeira, destinado a proteger a saúde e a integridade física do
trabalhador. A empresa é obrigada a fornecer aos empregados gratuitamente.
NR-7 - EXAMES MÉDICOS
Esta NR estabelece a obrigatoriedade da elaboração e implementação, por parte de todos os
empregadores e instituições que admitam trabalhadores como empregados, do Programa de
Controle Médico de Saúde Ocupacional - PCMSO, cujo objetivo é promover e preservar a
saúde do conjunto dos seus trabalhadores.
NR-8 - EDIFICAÇÕES
Esta NR estabelece requisitos técnicos mínimos que devam ser observados nas edificações para
garantir segurança e conforto aos que nelas trabalham.
Elaborado por:

Analisado por:

Professor :

Marcelo Gandra Falcone

Alessandra Aparecida Vieira

Marcelo Gandra Falcone

QUANDO IMPRESSO CONSIDERAR PIRATARIA - CÓPIA NÃO AUTORIZADA
UNINOVE

Rev. B

Engenharia de Avaliações e Perícias
Manutenção Predial e Avaliação de Máquinas
e Equipamentos

16/07/2011
Folha 407/424

NR-9 - RISCOS AMBIENTAIS
Esta NR estabelece a obrigatoriedade da elaboração e implementação, por parte de todos os
empregadores e instituições que admitam trabalhadores como empregados, do Programa de
Prevenção de Riscos Ambientais, através da antecipação, reconhecimento, avaliação e
conseqüente controle da ocorrência de riscos ambientais existentes ou que venham a existir no
ambiente de trabalho.
NR-10 - ELETRICIDADE
Esta NR fixa as condições mínimas exigidas para garantir a segurança dos empregados que
trabalham em instalações elétricas, em suas etapas, incluindo projeto, execução, operação,
manutenção, reforma e ampliação e ainda, a segurança de usuários e terceiros.
NR-11 - MOVIMENTAÇÃO DE MATERIAIS - ANEXO DA NR-11
Esta NR estabelece normas de segurança para operação de elevadores, guindastes,
transportadores industriais e máquinas transportadoras. O armazenamento de materiais deverá
obedecer aos requisitos de segurança para cada tipo de material.
NR-12 - MÁQUINAS E EQUIPAMENTOS
Esta NR estabelece os procedimentos obrigatórios nos locais destinados a máquinas e
equipamentos, como piso, áreas de circulação, dispositivos de partida e parada, normas sobre
proteção de máquinas e equipamentos, bem como manutenção e operação.
NR-13 - CALDEIRAS E VASOS SOB PRESSÃO
Esta NR estabelece os procedimentos obrigatórios nos locais onde se situam as caldeiras de
qualquer fonte de energia, projeto, acompanhamento de operação e manutenção, inspeção
e supervisão de inspeção de caldeiras e vasos de pressão, em conformidade com a
regulamentação profissional vigente no País.
NR-14 - FORNOS
Esta NR estabelece os procedimentos mínimos, fixando construção sólida, revestida com
material refratário, de forma que o calor radiante não ultrapasse os limites de tolerância,
oferecendo o máximo de segurança e conforto aos trabalhadores.
NR-15 - ATIVIDADES E OPERAÇÕES INSALUBRES
Esta NR estabelece os procedimentos obrigatórios, nas atividades ou operações insalubres que
são executadas acima dos limites de tolerância previstos na Legislação, comprovadas através
de laudo de inspeção do local de trabalho. Agentes agressivos: ruído, calor, radiações,
pressões, frio, umidade, agentes químicos, etc...
NR-16 - ATIVIDADES E OPERAÇÕES PERIGOSAS
Esta NR estabelece os procedimentos nas atividades exercidas pelos trabalhadores que
manuseiam e/ou transportam explosivos ou produtos químicos, classificados como inflamáveis,
substâncias radioativas e serviços de operação e manutenção.
NR-17 - ERGONOMIA
Elaborado por:

Analisado por:

Professor :

Marcelo Gandra Falcone

Alessandra Aparecida Vieira

Marcelo Gandra Falcone

QUANDO IMPRESSO CONSIDERAR PIRATARIA - CÓPIA NÃO AUTORIZADA
UNINOVE

Rev. B

Engenharia de Avaliações e Perícias
Manutenção Predial e Avaliação de Máquinas
e Equipamentos

16/07/2011
Folha 408/424

Esta NR visa estabelecer parâmetros que permitam a adaptação das condições de trabalho às
características psicofisiológicas dos trabalhadores, de modo a proporcionar um máximo de
conforto, segurança e desempenho eficiente.
NR-17 - ANEXO 1
Trabalho dos Operadores de Checkouts - Arquivo PDF (22kb).
NR-17 - ANEXO 2
Trabalho em Teleatendimento / Telemarketing - Arquivo PDF (68kb).
NR-18 - OBRAS DE CONSTRUÇÃO, DEMOLIÇÃO E REPAROS
Esta NR estabelece diretrizes de ordem administrativa, de planejamento e de organização, que
objetivam a implementação de medidas de controle e sistemas preventivos de segurança nos
processos, nas condições e no meio ambiente de trabalho na Indústria da Construção.
NR-19 - EXPLOSIVOS E ANEXO 1
Esta NR estabelece o fiel cumprimento do procedimento em manusear, transportar e armazenar
explosivos.
NR-19 - ANEXO 1
Segurança e Saúde na Indústria de Fogos de Artifício e outros Artefatos Pirotécnicos - Arquivo
PDF (45kb).
NR-20 - LÍQUIDOS COMBUSTÍVEIS E INFLAMÁVEIS
Esta NR estabelece a definição para Líquidos Combustíveis, Líquidos Inflamáveis e Gás Liqüefeito
de Petróleo, parâmetros para armazenar, como transportar e como devem ser manuseados
pelos trabalhadores.
NR-21 - TRABALHO A CÉU ABERTO
Esta NR estabelece os critérios mínimos para os serviços realizados a céu aberto, sendo
obrigatória a existência de abrigos, ainda que rústicos, capazes de proteger os trabalhadores
contra intempéries.
NR-22 - TRABALHOS SUBTERRÂNEOS
Esta NR estabelece sobre Segurança e Medicina do Trabalho em minas, determinando que a
empresa adotará métodos e manterá locais de trabalho que proporcionem a seus empregados
condições satisfatórias de Segurança e Medicina do Trabalho.
NR-23 - PROTEÇÃO CONTRA INCÊNDIOS
Esta NR estabelece os procedimentos que todas as empresas devam possuir, no tocante à
proteção contra incêndio, saídas de emergência para os trabalhadores, equipamentos
suficientes para combater o fogo e pessoal treinado no uso correto.
NR-24 - CONDIÇÕES SANITÁRIAS E DE CONFORTO NOS LOCAIS DE TRABALHO
Elaborado por:

Analisado por:

Professor :

Marcelo Gandra Falcone

Alessandra Aparecida Vieira

Marcelo Gandra Falcone

QUANDO IMPRESSO CONSIDERAR PIRATARIA - CÓPIA NÃO AUTORIZADA
UNINOVE

Rev. B

Engenharia de Avaliações e Perícias
Manutenção Predial e Avaliação de Máquinas
e Equipamentos

16/07/2011
Folha 409/424

Esta NR estabelece critérios mínimos, para fins de aplicação de aparelhos sanitários, gabinete
sanitário, banheiro, cujas instalações deverão ser separadas por sexo, vestiários, refeitórios,
cozinhas e alojamentos.
NR-25 - RESÍDUOS INDUSTRIAIS
Esta NR estabelece os critérios que deverão ser eliminados dos locais de trabalho, através de
métodos, equipamentos ou medidas adequadas, de forma a evitar riscos à saúde e à
segurança do trabalhador.
NR-26 - SINALIZAÇÃO DE SEGURANÇA
Esta NR tem por objetivos fixar as cores que devam ser usadas nos locais de trabalho para
prevenção de acidentes, identificando, delimitando e advertindo contra riscos.
NR-27 - REGISTRO PROFISSIONAL DO TÉCNICO DE SEGURANÇA DO TRABALHO NO MTB
Esta NR estabelece que o exercício da profissão depende de registro no Ministério do Trabalho,
efetuado pela SSST, com processo iniciado através das DRT. Revogada pela Portaria GM n.º 262,
29/05/2008 Registro Profissional do Técnico de Segurança do Trabalho no MTB
NR-28 - FISCALIZAÇÃO E PENALIDADES
Esta NR estabelece que Fiscalização, Embargo, Interdição e Penalidades, no cumprimento das
disposições legais e/ou regulamentares sobre segurança e saúde do trabalhador, serão
efetuados, obedecendo ao disposto nos Decretos Leis.
NR-29 - SEGURANÇA E SAÚDE NO TRABALHO PORTUÁRIO
Esta NR regulariza a proteção obrigatória contra acidentes e doenças profissionais, alcançando
as melhores condições possíveis de segurança e saúde aos trabalhadores, que exerçam
atividades nos portos organizados e instalações portuárias de uso privativo e retroportuárias,
situadas dentro ou fora da área do porto organizado.
NR-30 - SEGURANÇA E SAÚDE NO TRABALHO AQUAVIÁRIO E ANEXO 1 E ANEXO 2
Esta norma aplica-se aos trabalhadores das embarcações comerciais, de bandeira nacional,
bem como às de bandeiras estrangeiras, no limite do disposto na Convenção da OIT n.º 147 Normas Mínimas para Marinha Mercante, utilizados no transporte de mercadorias ou de
passageiros, inclusive naquelas utilizadas na prestação de serviços, seja na navegação marítima
de longo curso, na de cabotagem, na navegação interior, de apoio marítimo e portuário, bem
como em plataformas marítimas e fluviais, quando em deslocamento.
NR-31 - SEGURANÇA E SAÚDE NO TRABALHO NA AGRICULTURA, PECUÁRIA SILVICULTURA,
EXPLORAÇÃO FLORESTAL E AQUICULTURA
Esta Norma Regulamentadora tem por objetivo estabelecer os preceitos a serem observados na
organização e no ambiente de trabalho, de forma a tornar compatível o planejamento e o
desenvolvimento das atividades da agricultura, pecuária, silvicultura, exploração florestal e
aqüicultura com a segurança e saúde e meio ambiente do trabalho.
NR-32 - SEGURANÇA E SAÚDE NO TRABALHO EM ESTABELECIMENTOS DE SAÚDE

Elaborado por:

Analisado por:

Professor :

Marcelo Gandra Falcone

Alessandra Aparecida Vieira

Marcelo Gandra Falcone

QUANDO IMPRESSO CONSIDERAR PIRATARIA - CÓPIA NÃO AUTORIZADA
UNINOVE

Rev. B

Engenharia de Avaliações e Perícias
Manutenção Predial e Avaliação de Máquinas
e Equipamentos

16/07/2011
Folha 410/424

Esta Norma Regulamentadora – NR tem por finalidade estabelecer as diretrizes básicas para a
implementação de medidas de proteção à segurança e à saúde dos trabalhadores dos
serviços de saúde, bem como daqueles que exercem atividades de promoção e assistência à
saúde em geral.
NR-33 - SEGURANÇA E SAÚDE NO TRABALHO EM ESPAÇOS CONFINADOS
Esta Norma tem como objetivo estabelecer os requisitos mínimos para identificação de espaços
confinados e o reconhecimento, avaliação, monitoramento e controle dos riscos existentes, de
forma a garantir permanentemente a segurança e saúde dos trabalhadores que interagem
direta ou indiretamente nestes espaços

Elaborado por:

Analisado por:

Professor :

Marcelo Gandra Falcone

Alessandra Aparecida Vieira

Marcelo Gandra Falcone

QUANDO IMPRESSO CONSIDERAR PIRATARIA - CÓPIA NÃO AUTORIZADA
UNINOVE

Rev. B

Engenharia de Avaliações e Perícias
Manutenção Predial e Avaliação de Máquinas
e Equipamentos

16/07/2011
Folha 411/424

APENDICE 5 – Normas Eng Civil

Relação das Normas Técnicas da Biblioteca de
Normas Técnicas – Sinduscon – Sebrae
ACESSIBILIDADE
NBR 9050 Acessibilidade de pessoas portadoras de deficiências a edificações, mobiliário
e equipamentos urbanos
ACÚSTICA
NBR 8572 Fixação de valores de redução de nível de ruído para tratamento acústico de
edificações expostas ao ruído aeronáutico – procedimento
NBR 10151 Acústica – Avaliação do ruído em áreas habitadas, visando o conforto da
comunidade – procedimento
NBR 10152 Níveis de ruído para conforto acústico
NBR 10830 (TB 355) Acústica dos edifícios
NBR 12179 Tratamento acústico em recintos fechados - procedimento
ALVENARIA - BLOCOS
NBR 5712 Blocos vazados modular de concreto
NBR 6460 –jun-83 Tijolo maciço cerâmico para alvenaria - Verificação da resistência à
compressão
NBR 7170 –jun-83 Tijolo maciço cerâmico para alvenaria
NBR 7173 Blocos vazados de concreto simples para alvenaria sem função estrutural
NBR 8041 - -jun-83 Tijolo maciço cerâmico para alvenaria - Forma e dimensões
NBR 8545 01-jul-84 Execução de alvenaria sem função estrutural de tijolos e blocos
cerâmicos
NBR 12117 01-out-91 Blocos vazados de concreto para alvenaria - Retração por
secagem.
NBR 12118 01-out-91 Blocos vazados de concreto simples para alvenaria - Determinação
da absorção de água, do teor de umidade e da área líquida
NBR 14956-1 01-mai-03 Blocos de concreto celular autoclavado - Execução de alvenaria
sem função estrutural - Parte 1: Procedimento com argamassa colante industrializada
NBR 14956-2 01-mai-03 Bloco de concreto celular autoclavado - Execução de alvenaria
sem função estrutural - Parte 2 : Procedimento com argamassa convencional
NBR 15270-1 31-ago-05 Componentes cerâmicos - Parte 1: Blocos cerâmicos para
alvenaria de vedação - Terminologia e requisitos
NBR 15270-2 31-ago-05 Componentes cerâmicos - Parte 2: Blocos cerâmicos para
alvenaria estrutural - Terminologia e requisitos
NBR 15270-3 31-ago-05 Componentes cerâmicos - Parte 3: Blocos cerâmicos para
alvenaria estrutural e de vedação - Método de ensaio

Elaborado por:

Analisado por:

Professor :

Marcelo Gandra Falcone

Alessandra Aparecida Vieira

Marcelo Gandra Falcone

QUANDO IMPRESSO CONSIDERAR PIRATARIA - CÓPIA NÃO AUTORIZADA
UNINOVE

Rev. B

Engenharia de Avaliações e Perícias
Manutenção Predial e Avaliação de Máquinas
e Equipamentos

16/07/2011
Folha 412/424

ALVENARIA - ESTRUTURAL
NBR 6136 Bloco vazado de concreto simples para alvenaria estrutural
NBR 8215 01-out-83 Prismas de blocos vazados de concreto simples para alvenaria
estrutural - Preparo e ensaio à compressão
NBR 8798 01-fev-85 Execução e controle de obras em alvenaria estrutural de blocos
vazados de concreto
NBR 8949 01-jul-85 Paredes de alvenaria estrutural - Ensaio à compressão simples
NBR 10837 Cálculo de alvenaria estrutural de blocos vazados de concreto procedimento
NBR 14321 01-mai-99 Paredes de alvenaria estrutural - Determinação da resistência ao
cisalhamento
NBR 14322 01-mai-99 Paredes de alvenaria estrutural - Verificação da resistência à flexão
simples ou à flexo-compressão
AMOSTRAGEM
NBR 5425 Guia para inspeção por amostragem no controle e certificação de qualidade
NBR 5426 Planos de amostragem e procedimentos na inspeção por atributos
NBR 5427 Guia para utilização da norma NBR 5426 – Planos de amostragem e
procedimentos na inspeção por atributos
NBR 5428 Procedimentos estatísticos para determinação da validade de inspeção por
atributos feitos pelos fornecedores
NBR 5429 Planos de amostragem e procedimentos na inspeção por variáveis
NBR 5430 Guia de utilização da norma NBR 5429 - Planos de amostragem e
procedimentos na inspeção por variáveis
AR CONDICIONADO
NBR 6401 Instalações de centrais de ar condicionado para conforto – Parâmetros
básicos de projeto
NBR 10080 01-nov-87 Instalações de ar condicionado para salas de computadores
AR CONDICIONADO - CONDICIONADORES
NBR 6675 02-jul-93 Instalação de condicionadores de ar de uso doméstico (tipo
monobloco ou modular)
NBR 14679 01-abr-01 Sistemas de condicionamento de ar e ventilação - Execução de
serviços de higienização
ARGAMASSA
NBR 8490 01-abr-84 Argamassas endurecidas para alvenaria estrutural - Retração por
secagem
NBR 9778 29-jul-05 Argamassa e concreto endurecidos - Determinação da absorção de
água, índice de vazios e massa específica - (Errata 31/05/2006)

Elaborado por:

Analisado por:

Professor :

Marcelo Gandra Falcone

Alessandra Aparecida Vieira

Marcelo Gandra Falcone

QUANDO IMPRESSO CONSIDERAR PIRATARIA - CÓPIA NÃO AUTORIZADA
UNINOVE

Rev. B

Engenharia de Avaliações e Perícias
Manutenção Predial e Avaliação de Máquinas
e Equipamentos

16/07/2011
Folha 413/424

NBR 9779 02-abr-95 Argamassa e concreto endurecidos - Determinação da absorção de
água por capilaridade
NBR 10908 01-jan-90 Aditivos para argamassa e concretos - Ensaios de uniformidade
NBR 11173 – Projeto e Execução de Argamassa Armada
NBR 11801 01-abr-92 Argamassa de alta resistência meânica para pisos
NBR 12041 01-abr-92 Argamassa de alta resistência mecânica para pisos - Determinação
da resistência à compressão simples e tração por compressão diametral
NBR 13276 30-set-05 Argamassa para assentamento e revestimento de paredes e tetos Preparo da mistura e determinação do índice de consistência
NBR 13277 30-set-05 Argamassa para assentamento e revestimento de paredes e tetos –
Determinação da retenção de água
NBR 13278 30-set-05 Argamassa para assentamento e revestimento de paredes e tetos –
Determinação da densidade de massa e do teor de ar incorporado
NBR 13279 30-set-05 Argamassa para assentamento e revestimento de paredes e tetos –
Determinação da resistência à tração na flexão e à compressão
NBR 13280 30-set-05 Argamassa para assentamento e revestimento de paredes e tetos –
Determinação da densidade de massa aparente no estado endurecido
NBR 13281 30-set-05 Argamassa para assentamento e revestimento de paredes e tetos –
Requisitos
NBR 15259 30-set-05 Argamassa para assentamento e revestimento de paredes e tetos –
Determinação da absorção de água por capilaridade e do coeficiente de capilaridade
NBR 15261 30-set-05 Argamassa para assentamento e revestimento de paredes e tetos –
Determinação da variação dimensional (retração ou expansão linear)
ARGAMASSA - ASSENTAMENTO
NBR 9287 01-mar-86 Argamassa de assentamento para alvenaria de bloco de concreto Determinação da retenção de água
NBR 14081 01-dez-04 Argamassa colante industrializada para assentamento de placas
cerâmicas – Requisitos
NBR 14083 Argamassa colante industrializada para assentamento de placas cerâmicas –
determinação do tempo em aberto
NBR 14084 Argamassa colante industrializada para assentamento de placas cerâmicas –
determinação da resistência de aderência
NBR 14086 31-dez-04 Argamassa colante industrializada para assentamento de placas
cerâmicas - Determinação da densidade de massa aparente
ARGAMASSA - REVESTIMENTO
NBR 7200 01-ago-98 Execução de revestimento de paredes e tetos de argamassas
inorgânicas - Procedimento
NBR 13528 01-nov-95 Revestimento de paredes e tetos de argamassas inorgânicas Determinação da resistência de aderência à tração
NBR 13529 01-nov-95 Revestimento de paredes e tetos de argamassas inorgânicas Terminologia
Elaborado por:

Analisado por:

Professor :

Marcelo Gandra Falcone

Alessandra Aparecida Vieira

Marcelo Gandra Falcone

QUANDO IMPRESSO CONSIDERAR PIRATARIA - CÓPIA NÃO AUTORIZADA
UNINOVE

Rev. B

Engenharia de Avaliações e Perícias
Manutenção Predial e Avaliação de Máquinas
e Equipamentos

16/07/2011
Folha 414/424

NBR 13530 01-nov-95 Revestimento de paredes e tetos de argamassas inorgânicas Classificação
NBR 13749 01-dez-96 Revestimento de paredes e tetos de argamassas inorgânicas Especificação
NBR 15258 30-set-05 Argamassa para revestimento de paredes e tetos – Determinação
da resistência potencial de aderência à tração
AZULEJO / CERÂMICA
NBR 5716 –fev.82 Componentes de cerâmica, de concreto ou de outro material utilizado
em lajes mistas na construção coordenada modularmente.
NBR 8214 01-out-83 Assentamento de azulejos
NBR 13753 01-dez-96 Revestimento de piso interno ou externo com placas cerâmicas e
com utilização de argamassa colante - Procedimento
NBR 13754 01-dez-96 Revestimento de paredes internas com placas cerâmicas e com
utilização de argamassa colante - Procedimento
NBR 13755 01-dez-96 Revestimento de paredes externas e fachadas com placas
cerâmicas e com utilização de argamassa colante - Procedimento
NBR 13816 01-abr-97 Placas cerâmicas para revestimento - Terminologia
NBR13817 –abr Placas cerâmicas para revestimento – Classificação
NBR 13818 01-abr-97 Placas cerâmicas para revestimento - Especificação e métodos de
ensaios
CAIXILHOS
NBR 6485 Caixilho para edificações – janela, fachada – cortina e porta externa –
verificação de penetração de ar
NBR 6486 Caixilho para edificações – janela, fachada – cortina e porta externa –
verificação de estanqueidade à água
NBR 6487 Caixilho para edificações – janela, fachada – cortina e porta externa –
verificação de comportamento quando submetidos a cargas uniformemente distribuídas
NBR 10820 (TB 354) Caixilho para edificação – janela – terminologia
NBR 10821 Caixilho para edificação – janelas
NBR 10829 (NB 1220) Caixilho para edificação – janela – medição de atenuação acústica
– método de ensaio
NBR 10831 (NB 1220) Projeto e utilização de caixilhos para edificações de uso
residencial e comercial – janelas
COBERTURA
NBR 8039 Projeto e execução de telhados com telhas cerâmicas tipo francesa
NBR 8055 01-set-85 Parafusos, ganchos e pinos usados para a fixação de telhas de
fibrocimento - Dimensões e tipos
NBR 13858-1 01-abr-97 Telhas de concreto - Parte 1: Projeto e execução de telhados
NBR 13858-2 01-abr-97 Telhas de concreto - Parte 2: Requisitos e métodos de ensaio
Elaborado por:

Analisado por:

Professor :

Marcelo Gandra Falcone

Alessandra Aparecida Vieira

Marcelo Gandra Falcone

QUANDO IMPRESSO CONSIDERAR PIRATARIA - CÓPIA NÃO AUTORIZADA
UNINOVE

Rev. B

Engenharia de Avaliações e Perícias
Manutenção Predial e Avaliação de Máquinas
e Equipamentos

16/07/2011
Folha 415/424

NBR 14513 01-nov-02 Telhas de aço revestido de seção ondulada - Requisitos
NBR 14514 01-jun-02 Telhas de aço revestido de seção trapezoidal - Requisitos
NBR 15310 30-nov-05 Componentes cerâmicos - Telhas - Terminologia, requisitos e
métodos de ensaio
ELÉTRICA
NBR 5111 01-mai-97 Fios de cobre nus, de seção circular, para fins elétricos Especificação
NBR 5118 01-nov-85 Fios de alumínio nus de seção circular para fins elétricos
NBR 5349 01-fev-97 Cabos nus de cobre mole para fins elétricos - Especificação
NBR 5354 Requisitos gerais para material de instalações elétricas
NBR 5382 Verificação de iluminância de interiores
NBR 5410 Instalações elétricas de baixa tensão
NBR 5413 Iluminância de Interiores
NBR 5444

Símbolos gráficos para instalações elétricas prediais

NBR 5456 Eletricidade geral – Terminologia
NBR 5461 Iluminação
NBR 6150 01-dez-80 Eletroduto de PVC rígido
NBR 6349 01-abr-91 Fios, barras e cordoalhas de aço para armaduras de protensão Ensaio de tração
NBR 6689 30-jul-81 Requisitos gerais para condutos de instalações elétricas prediais
NBR 8451 01-fev-98 Postes de concreto armado para redes de distribuição de energia
elétrica - Especificação
NBR 8452 01-fev-98 Postes de concreto armado para redes de distribuição de energia
elétrica – Padronização
NBR 8837 Iluminação esportiva
NBR 12523 Símbolos gráficos de equipamentos de manobra e controle e de dispositivos
de proteção
NBR 13418 01-jul-95 Cabos resistentes ao fogo para instalações de segurança
NBR 13534 01-nov-95 Instalações elétricas em estabelecimentos assistenciais de saúde
– Requisitos para segurança
NBR 13570 Instalações elétricas em locais de afluência de público – requisitos
específicos
NBR 13571 01-fev-96 Haste de aterramento aço-cobreada e acessórios
NBR 14039 31-mai-05 Instalações elétricas de média tensão de 1,0 kV a 36,2 kV
ELEVADORES
NBR 5665 Cálculo de tráfego nos elevadores – procedimento
EQUIPAMENTO URBANO
Elaborado por:

Analisado por:

Professor :

Marcelo Gandra Falcone

Alessandra Aparecida Vieira

Marcelo Gandra Falcone

QUANDO IMPRESSO CONSIDERAR PIRATARIA - CÓPIA NÃO AUTORIZADA
UNINOVE

Rev. B

Engenharia de Avaliações e Perícias
Manutenção Predial e Avaliação de Máquinas
e Equipamentos

16/07/2011
Folha 416/424

NBR 9283 Mobiliário urbano – classificação
NBR 9284 Equipamento urbano – classificação
ESQUADRIAS (ver caixilho)
ESTRUTURA
NBR 6118 Projeto de estruturas de concreto - procedimento
NBR 6120 01-nov-80 Cargas para o cálculo de estruturas de edificações - (Errata
01/04/2000)
NBR 6123 01-jun-88 Forças devidas ao vento em edificações - (Errata 01/12/1990)
NBR 8953 Concreto para fins estruturais – classificação por grupos de resistência
ESTRUTURA - AÇO
NBR 8800 01-abr-86 Projeto e execução de estruturas de aço de edifícios (método dos
estados limites) - Erratas (30/07/1988 e 30/04/1997)
NBR 9971 01-ago-87 Elementos de fixação dos componentes das estruturas metálicas
NBR 14323 01-jun-99 Dimensionamento de estruturas de aço de edifícios em situação de
incêndio Procedimento
ESTRUTURA – CONCRETO
NBR 5738 30-dez-03 Concreto - Procedimento para moldagem e cura de corpos-de-prova
NBR 5739 01-jul-94 Concreto - Ensaio de compressão de corpos-de-prova cilíndricos
NBR 7176 - Mourões de concreto armado para cercas de arame farpado
NBR 7211 30-mar-05 Agregados para concreto - Especificação - (Errata 29/07/2005)
NBR 7212 01-dez-84 Execução de concreto dosado em central
NBR 7584 01-mar-95 Concreto endurecido - Avaliação da dureza superficial pelo
esclerômetro de reflexão
NBR 7680 01-jan-83 Extração, preparo, ensaio e análise de testemunhos de estruturas de
concreto
NBR 8224 01-nov-83 Concreto endurecido - Determinação da fluência
NBR 8453 - Cruzeta de concreto armado para redes de distribuição de energia elétrica
NBR 8454 - Cruzeta de concreto armado para redes de distribuição de energia elétrica –
Dimensões
NBR 9062 Projeto e execução de Estruturas de concreto Pré-moldado
NBR 9607 01-set-86 Prova de carga em estruturas de concreto armado e protendido.
NBR 9935 29-jul-05 Agregados - Terminologia
NBR 10342 02-set-92 Concreto - Perda de abatimento
NBR 10786 01-nov-89 Concreto endurecido - Determinação do coeficiente de
permeabilidade à água
NBR 11768 01-jan-92 Aditivos para concreto de cimento Portland
Elaborado por:

Analisado por:

Professor :

Marcelo Gandra Falcone

Alessandra Aparecida Vieira

Marcelo Gandra Falcone

QUANDO IMPRESSO CONSIDERAR PIRATARIA - CÓPIA NÃO AUTORIZADA
UNINOVE

Rev. B

Engenharia de Avaliações e Perícias
Manutenção Predial e Avaliação de Máquinas
e Equipamentos

16/07/2011
Folha 417/424

NBR 12317 01-jan-92 Verificação de desempenho de aditivos para concreto
NBR 12654 01-jun-92 Controle tecnológico de materiais componentes do concreto –
(Errata 01/03/2000)
NBR 12655 14-ago-06 Concreto de cimento Portland – Preparo, controle e recebimento –
Procedimento. ( NORMA ATUALIZADA )
NBR 12815 01-fev-93 Concreto endurecido - Determinação do coeficiente de dilatação
térmica linear
NBR 12816 01-fev-93 Concreto endurecido - Determinação da capacidade de deformação
de concreto submetido à tração na flexão
NBR 12817 01-mar-93 Concreto endurecido - Determinação do calor específico
NBR 14931 Execução de estruturas de concreto - procedimento
NBR 15146 01-out-04 Controle tecnológico de concreto - Qualificação de pessoal –
Requisitos
NBR 15305 - Produtos pré-fabricados de materiais cimentícios reforçados com fibra de
vidro - Procedimentos para o controle da fabricação
NBR NM 33 01-fev-98 Concreto - Amostragem de concreto fresco
NBR NM 67 01-fev-98 Concreto - Determinação da consistência pelo abatimento do
tronco de cone
NBR NM 9 17-jul-03 Concreto e argamassa - Determinação dos tempos de pega por meio
de resistência à penetração
NM 55 01-jan-96 Concreto - Determinação da resistência à tração na flexão de corpos-deprova prismáticos
NM 8 01-jan-94 Concreto - Determinação da resistência à tração por compressão
diametral
FUNDAÇÃO
NBR 6122 Projeto e execução de fundações
NBR 9061 01-set-85 Segurança de escavação a céu aberto
NBR 11682 01-set-91 Estabilidade de taludes
FUNDAÇÃO - ESTACA
NBR 12131 01-abr-92 Estacas - Prova de carga estática
FUNDAÇÃO – SOLO
NBR 5681 01-nov-80 Controle tecnológico da execução de aterros em obras de
edificações
NBR 6484 Solo – sondagens de simples reconhecimento com SPT – método de ensaio
NBR 6497 Levantamento geotécnico
NBR 7182 01-ago-86 Solo - Ensaio de compactação
NBR 8036 Programação de sondagens de simples reconhecimento dos solos para
fundações de edifícios
NBR 8044 Projeto geotécnico - procedimento
Elaborado por:

Analisado por:

Professor :

Marcelo Gandra Falcone

Alessandra Aparecida Vieira

Marcelo Gandra Falcone

QUANDO IMPRESSO CONSIDERAR PIRATARIA - CÓPIA NÃO AUTORIZADA
UNINOVE

Rev. B

Engenharia de Avaliações e Perícias
Manutenção Predial e Avaliação de Máquinas
e Equipamentos

16/07/2011
Folha 418/424

NBR 9603 Sondagem a trado
NBR 12069 01-jun-91 Solo - Ensaio de penetração de cone in situ (CPT)
NBR 12102 01-nov-91 Solo - Controle de compactação pelo método de Hilf
NBR 14545 01-jul-00 Solo - Determinação do coeficiente de permeabilidade de solos
argilosos a carga variável
GÁS
NBR 13103 31-mar-06 Instalação de aparelhos a gás para uso residencial — Requisitos
dos ambientes
NBR 13523 28-fev-06 Central de gás liquefeito de petróleo (GLP)
NBR 13932 Instalações internas de gás liquefeito de petróleo (GLP) – projeto e execução
NBR 13933 01-ago-97 Instalações internas de gás natural (GN) - Projeto e execução
NBR 14024 Centrais prediais e industriais de gás liquefeito de petróleo (GLP) - sistema
de abastecimento a granel
NBR 14177 01-ago-98 Tubo flexível metálico para instalações domésticas de gás
combustível
NBR 14570 01-ago-00 Instalações internas para uso alternativo dos gases GN e GLP Projeto e execução
GESSO
NBR 12127 Gesso para construção- determinação das propriedades físicas do pó –
métodos de ensaio
NBR 12128 (MB 3469) Gesso para construção- determinação das propriedades físicas da
pasta
NBR 12129 (MB 3470) Gesso para construção- determinação das propriedades
mecânicas
NBR 12130 (MB 3471) Gesso para construção- determinação da água livre e de
cristalização e teores de óxido de cálcio e anidrido sulfúrico – métodos de ensaios
NBR 12775 Placas lisas de gesso para forro – determinação das dimensões e
propriedades físicas
NBR 13207 Gesso para construção civil
NBR 13867 Revestimento interno de paredes e tetos com pastas de gesso – materiais,
preparo, aplicação e acabamento
GESSO ACARTONADO
NBR 14715 01-jul-01 Chapas de gesso acartonado – Requisitos
NBR 14716 01-jul-01 Chapas de gesso acartonado - Verificação das características
geométricas
NBR 14717 01-jul-01 Chapas de gesso acartonado - Determinação das características
físicas
NBR 15217 29-abr-05 Perfis de aço para sistemas de gesso acartonado - Requisitos

Elaborado por:

Analisado por:

Professor :

Marcelo Gandra Falcone

Alessandra Aparecida Vieira

Marcelo Gandra Falcone

QUANDO IMPRESSO CONSIDERAR PIRATARIA - CÓPIA NÃO AUTORIZADA
UNINOVE

Rev. B

Engenharia de Avaliações e Perícias
Manutenção Predial e Avaliação de Máquinas
e Equipamentos

16/07/2011
Folha 419/424

HIDRÁULICA
NBR 6493 Emprego de cores para identificação de tubulações
NBR 12266 01-abr-92 Projeto e execução de valas para assentamento de tubulação de
água, esgoto ou drenagem urbana
HIDRÁULICA - AF
NBR 5626 Instalação predial de água fria
NBR 5648 01-jan-99 Sistemas prediais de água fria - Tubos e conexões de PVC 6,3, PN
750 kPa, com junta soldável – Requisitos
NBR 5680 Dimensões de tubos de PVC rígido
NBR 9256 01-fev-86 Montagem de tubos e conexões galvanizados para instalações
prediais de água fria
NBR 10570 01-dez-88 Tubos e conexões de PVC rígido com junta elástica para coletor
predial e sistema condominial de esgoto sanitário - Tipos e dimensões
NBR 14301 01-mai-99 Sistemas de ramais prediais de água - Tubos de polietileno PE –
Determinação das dimensões
HIDRÁULICA - AP
NBR 5688 01-jan-99 Sistemas prediais de água pluvial, esgoto sanitário e ventilação Tubos e conexões de PVC, tipo DN – Requisitos
NBR 10844 Instalações prediais de águas pluviais - procedimento
HIDRÁULICA - AQ
NBR 7198 02-set-93 Projeto e execução de instalações prediais de água quente
NBR 15345 31-mar-06 Instalação predial de tubos e conexões de cobre e ligas de cobre Procedimento
HIDRÁULICA - CERÂMICO
NBR 15098 30-jun-04 Aparelhos sanitários de material cerâmico - Procedimento para
instalação
HIDRÁULICA - ESGOTO
NBR 7229 01-set-93 Projeto, construção e operação de sistemas de tanques sépticos
NBR 7367 Projeto e assentamento de tubulações de PVC rígido para sistemas de esgoto
sanitário – procedimento
NBR 8160 Sistemas prediais de esgoto sanitário – Projeto e execução
NBR 9814 Execução de rede coletora de esgoto sanitário – procedimento
NBR 13969 01-set-97 Tanques sépticos - Unidades de tratamento complementar e
disposição final dos efluentes líquidos - Projeto, construção e operação
NBR 14486 Sistemas enterrados para condução de esgoto sanitário – projeto de redes
coletoras com tubos de PVC
Elaborado por:

Analisado por:

Professor :

Marcelo Gandra Falcone

Alessandra Aparecida Vieira

Marcelo Gandra Falcone

QUANDO IMPRESSO CONSIDERAR PIRATARIA - CÓPIA NÃO AUTORIZADA
UNINOVE

Rev. B

Engenharia de Avaliações e Perícias
Manutenção Predial e Avaliação de Máquinas
e Equipamentos

16/07/2011
Folha 420/424

IMPERMEABILIZAÇÃO
NBR 9574 Execução de impermeabilização
NBR 9575 Projeto de impermeabilização
NBR 9690 Mantas e polímeros para impermeabilização
INCORPORAÇÃO
NBR 5670 30-dez-77 Seleção e contratação de serviços e obras de engenharia e
arquitetura de natureza privada
NBR 5671 01-jun-90 Participação dos intervenientes em serviços e obras de engenharia e
arquitetura
NBR 5675 01-nov-80 Recebimento de serviços e obras de engenharia e arquitetura
NBR 12721 28-ago-06 Avaliação de custos unitários de construção para incorpooração
imobiliária e outras disposições para condomínios edifícios edilícios - Procedimento
NBR 12722 01-ago-92 Discriminação de serviços para construção de edifícios
NBR 13752 01-dez-96 Perícias de engenharia na construção civil
NBR 14645-1 Elaboração do "como construído" (as built) para edificações - Parte 1:
Levantamento planimétrico e cadastral de imóvel urbanizado com área até 25.000 m2,
para fins de estudos, projetos e edificação - Procedimento
NBR 14645-2 30-dez-05 Elaboração do "como construído" (as built) para edificações Parte 2: Levantamento planimétrico para registro público, para retificação de imóvel
urbano - Procedimento
NBR 14645-3 30-dez-05 Elaboração do "como construído" (as built) para edificações Parte 3: Locação topográfica e controle dimensional da obra - Procedimento
LAJES PRÉ-FABRICADAS
NBR 14859-1 Laje pré-fabricada – requisitos – parte 1: lajes unidirecionais
NBR 14859-2 Laje pré-fabricada – requisitos – parte 1: lajes bidirecionais
NBR 14860-1 Laje pré-fabricada – pré-laje - requisitos – parte 1: lajes unidirecionais
NBR 14860-2 Laje pré-fabricada – pré-laje - requisitos – parte 1: lajes bidirecionais
NBR 14861 Laje pré-fabricada – painel alveolar de concreto protendido - requisitos
MANUTENÇÃO
NBR 5674 01-set-99 Manutenção de edificações Procedimento
NBR 14037 01-mar-98 Manual de operação, uso e manutenção das edificações Conteúdo e recomendações para elaboração e apresentação
PAVIMENTAÇÃO
NBR 11171 01-jan-90 Serviços de pavimentação
PINTURA
Elaborado por:

Analisado por:

Professor :

Marcelo Gandra Falcone

Alessandra Aparecida Vieira

Marcelo Gandra Falcone

QUANDO IMPRESSO CONSIDERAR PIRATARIA - CÓPIA NÃO AUTORIZADA
UNINOVE

Rev. B

Engenharia de Avaliações e Perícias
Manutenção Predial e Avaliação de Máquinas
e Equipamentos

16/07/2011
Folha 421/424

NBR 5829 Determinação de Massa específica
NBR 5839 Coleta de amostras de tintas e vernizes
NBR 6312 (NB 2014) Inspeção visual de embalagens contendo tintas, vernizes e produtos
afins
NBR 9675 Segurança na fabricação de tintas
NBR 9676 Tintas determinação do poder de cobertura (opacidade) – métodos de ensaio
NBR 9675 Segurança na fabricação de tintas – procedimento
NBR 11702 Tintas para edificações não residenciais
NBR 12311 01-abr-92 Segurança no trabalho de pintura
NBR 12554 Tintas para edificações não industriais - terminologia
NBR 13245 01-fev-95 Execução de pinturas em edificações não industriais
NBR 14847 01-abr-02 Inspeção de serviços de pintura em superfícies metálicas
Procedimento
NBR 14942 Determinação do Poder de cobertura de tinta seca
NBR 14943 Determinação do Poder de cobertura de tinta úmida
NBR 14951 01-abr-03 Sistemas de pintura em superfícies metálicas - Defeitos e
correções
NBR 15078 Determinação de Resistência a abrasão úmida sem pasta abrasiva
NBR 15079 Tintas para a construção civil - especificação dos requisitos mínimos de
desempenho de tintas para edificações não industriais – tinta látex econômica nas cores
claras
NBR 15299 30-dez-05 Tintas para construção civil — Método para avaliação de
desempenho de tintas para edificações não industriais — Determinação de brilho
NBR 15301 30-dez-05 Tintas para construção civil — Método para avaliação de
desempenho de tintas para edificações não industriais — Determinação da resistência
de tintas e complementos ao crescimento de fungos em câmara tropical
NBR 15303 30-dez-05 Tintas para construção civil — Método para avaliação de
desempenho de tintas para edificações não industriais — Determinação da absorção de
água de massa niveladora
NBR 15304 30-dez-05 Tintas para construção civil — Método para avaliação de
desempenho de tintas para edificações não industriais — Avaliação de manchamento
por água
NBR 15311 30-dez-05 Tintas para construção civil — Método para avaliação de
desempenho de tintas para edificações não industriais — Determinação do tempo de
secagem de tintas e vernizes por medida instrumental
NBR 15312 30-dez-05 Tintas para construção civil — Método para avaliação de
desempenho de tintas para edificações não industriais — Determinação da resistência à
abrasão de massa niveladora
NBR 15313 30-dez-05 Tintas para construção civil — Procedimento básico para lavagem,
preparo e esterilização de materiais utilizados em análises microbiológicas
NBR 15314 30-dez-05 Tintas para construção civil — Método para avaliação de
desempenho de tintas para edificações não industriais — Determinação do poder de
cobertura em
película de tinta seca obtida por extensão
Elaborado por:

Analisado por:

Professor :

Marcelo Gandra Falcone

Alessandra Aparecida Vieira

Marcelo Gandra Falcone

QUANDO IMPRESSO CONSIDERAR PIRATARIA - CÓPIA NÃO AUTORIZADA
UNINOVE

Rev. B

Engenharia de Avaliações e Perícias
Manutenção Predial e Avaliação de Máquinas
e Equipamentos

16/07/2011
Folha 422/424

NBR 15315 30-dez-05 Tintas para construção civil — Método de ensaio de tintas para
edificações não industriais — Determinação do teor de sólidos
PISCINA
NBR 9816 Piscina – Terminologia
NBR 9818 Projeto e execução de piscina (tanque e área circundante)
NBR 9819 Piscina – Classificação
NBR 10339 Projeto e execução de piscina – sistema de recirculação e tratamento
NBR 10819 Projeto e execução de piscina (casa de máquinas, vestiários e banheiros)
NBR 11238 Segurança e higiene de piscinas
NBR 11239 (NB 1300) Projeto e execução de piscina (equipamentos para a borda do
tanque)
PISO
NBR 6451 Taco de madeira para soalho - especificação
NBR 7686 01-jan-83 Revestimentos têxteis de piso
NBR 7206 Placas de mármore natural para revestimento de pisos - Padronização
NBR 12260 01-dez-90 Execução de piso com argamassa de alta resistência mecânica
NBR 14833-2 21-jul-03 Revestimento de pisos laminados melamínicos de alta resistência
- Parte 2: Procedimentos para aplicação e manutenção
PISOS ELEVADOS
NBR 11802 01-fev-91 Pisos elevados - Adequação ao uso
NBR 12516 01-fev-91 Pisos elevados - Simbologia
PLAYGROUND
NBR 14350-1 01-jul-99 Segurança de brinquedos de playground - Parte 1: Requisitos e
métodos de ensaio - ( Errata (02/10/1999)
PORTA
NBR 8037 01-jun-83 Porta de madeira de edificação
NBR 8052 Porta de madeira de edificações – Dimensões - Padronização
NBR 8542 01-set-86 Desempenho de porta de madeira de edificação
PROJETOS
NBR 6492 Representação de projetos de arquitetura
NBR 7190 Projeto de estrutura de madeira
NBR 7808 Símbolos gráficos para projetos estruturais
NBR 10067 Princípios gerais de representação em desenho técnico – procedimento
Elaborado por:

Analisado por:

Professor :

Marcelo Gandra Falcone

Alessandra Aparecida Vieira

Marcelo Gandra Falcone

QUANDO IMPRESSO CONSIDERAR PIRATARIA - CÓPIA NÃO AUTORIZADA
UNINOVE

Rev. B

Engenharia de Avaliações e Perícias
Manutenção Predial e Avaliação de Máquinas
e Equipamentos

16/07/2011
Folha 423/424

NBR 10068 Folha de desenho - leiaute e dimensões
NBR 13531 Elaboração de projetos de edificações – atividades técnicas
NBR 13532 Elaboração de projetos de edificações – arquitetura
NBR 13707 Projeto de revestimento de paredes e estruturas com placa de rocha
SEGURANÇA
NBR 5419 Proteção de estruturas contra descargas atmosféricas
NBR 6135 30-abr-92 Chuveiros automáticos para extinção de incêndio Especificação
NBR 6479 02-abr-92 Portas e vedadores Determinação da resistência ao fogo
NBR 7195 Cores para segurança
NBR 7679 Termos básicos relativos à cor – terminologia
NBR 8681 Ações e segurança nas estruturas – procedimento
NBR 9077 Saídas de emergência em edifícios
NBR 17240 - 2010 Execução de sistemas de detecção e alarme de incêndio Procedimento
NBR 10898 Sistema de Iluminação de emergência
NBR 11742 Porta corta-fogo para saída de emergência – especificação
NBR 11785 Barra Antipânico – Requisitos
NBR 11836 Detectores de automáticos de fumaça para proteção contra incêndio
NBR 12615 Sistema de combate a incêndio por espuma - procedimento
NBR 12693 Sistemas de proteção por extintores de incêndio – procedimento
NBR 13434-1 31-mar-04 Sinalização de segurança contra incêndio e pânico - Parte 1:
Princípios de projeto
NBR 13434-2 31-mar-04 Sinalização de segurança contra incêndio e pânico - Parte 2:
Símbolos e suas formas, dimensões e cores
NBR 13434-3 29-jul-05 Sinalização de segurança contra incêndio e pânico - Parte 3:
Requisitos e métodos de ensaio
NBR 13714 Sistemas de hidrantes e de mangotinhos para combate a incêndio
NBR 13768 01-jan-97 Acessórios destinados à porta corta-fogo para saída de emergência
– Requisitos
NBR 13792 Proteção contra incêndio por sistema de chuveiros automáticos para áreas
de armazenamento em geral – procedimento
NBR 13848 Acionador manual para utilização em sistemas de detecção e alarme de
incêndio
NBR 14100 Proteção contra incêndio – símbolos gráficos para projetos
NBR 14432 Exigências de resistência ao fogo de elementos construtivos de edificações procedimento
NBR 14718 01-jul-01 Guarda-corpos para edificação
NBR 14880 Saídas de emergência em edifícios- escadas de segurança – controle de
fumaça por pressurização

Elaborado por:

Analisado por:

Professor :

Marcelo Gandra Falcone

Alessandra Aparecida Vieira

Marcelo Gandra Falcone

QUANDO IMPRESSO CONSIDERAR PIRATARIA - CÓPIA NÃO AUTORIZADA
UNINOVE

Rev. B

Engenharia de Avaliações e Perícias
Manutenção Predial e Avaliação de Máquinas
e Equipamentos

16/07/2011
Folha 424/424

TELEFONIA
NBR 13300 Redes telefônicas internas em prédios
NBR 13301 Redes telefônicas internas em prédios
NBR 13726 Redes telefônicas internas em prédios – Tubulação de entrada telefônica –
projeto
NBR 13727 Redes telefônicas internas em prédios – Plantas / partes componentes de
projeto de tubulação telefônica
NBR 13822 01-mai-97 Redes telefônicas em edificações com até cinco pontos telefônicos
– Projeto
NBR 14306 Proteção elétrica e compatibilidade eletromagnética em redes internas de
telecomunicações em edificações – Projeto
NBR 14565 Procedimento básico para elaboração de projetos de cabeamento de
telecomunicações para rede interna estruturada
TOPOGRAFIA
NBR 13133 30-mai-94 Execução de levantamento topográfico
VIDRO
NBR 7199 Projeto, execução e aplicação de vidros na construção civil
NBR 11706 Vidros para construção civil - especificação
NBR 14207 Boxes de banheiro, fabricados com vidro de segurança temperado – projeto,
instalação e materiais utilizados

Elaborado por:

Analisado por:

Professor :

Marcelo Gandra Falcone

Alessandra Aparecida Vieira

Marcelo Gandra Falcone

QUANDO IMPRESSO CONSIDERAR PIRATARIA - CÓPIA NÃO AUTORIZADA

Manutenção predial e avaliação de máquinas e equipamentos 2011

  • 1.
    UNINOVE Rev. B Engenharia deAvaliações e Perícias Manutenção Predial e Avaliação de Máquinas e Equipamentos 16/07/2011 Folha 1/424 UNIVERSIDADE NOVE DE JULHO – UNINOVE Centro de Pós-Graduação PÓS-GRADUAÇÃO Lato Sensu Curso de ENGENHARIA DE AVALIAÇÕES E PERÍCIAS MANUTENÇÃO PREDIAL E AVALIAÇÃO DE MÁQUINAS E EQUIPAMENTOS Marcelo Gandra Falcone São Paulo 2010 Elaborado por: Analisado por: Professor : Marcelo Gandra Falcone Alessandra Aparecida Vieira Marcelo Gandra Falcone QUANDO IMPRESSO CONSIDERAR PIRATARIA - CÓPIA NÃO AUTORIZADA
  • 2.
    UNINOVE Rev. B Engenharia deAvaliações e Perícias Manutenção Predial e Avaliação de Máquinas e Equipamentos 16/07/2011 Folha 2/424 SUMÁRIO Inspeção e Manutenção Predial ............................................................................... 10 1) Definições e Conceitos de Inspeção e Manutenção Predial .............................. 10 2) Preceitos Legais .............................................................................................. 16 3) Definições, conceitos, critérios, metodologia e classificações de riscos segundo as normas vigentes. ............................................................................................. 18 4) Definições de estado de conservação e suas classificações............................... 29 5) Aspectos legais e aplicabilidade. ..................................................................... 30 6) Valorização patrimonial desencadeada por ações de manutenção predial......... 38 7) COMPONENTES DOS LAUDOS E INFORMAÇÕES IMPORTANTES RELATIVAS À MANUTENÇÃO E INSPEÇÃO PREDIAL. ............................. 42 8) TÓPICOS PARA CHECK-LIST DA MANUTENÇÃO PREDIAL INTEGRADA. .................................................................................................... 46 9) Orientações técnicas de anomalias................................................................... 61 9.2 Sistema de impermeabilização....................................................................... 77 9.3. Sistema de Revestimentos............................................................................. 82 9.4. SISTEMAS DE PINTURA........................................................................... 89 9.5. Sistemas de Esquadrias................................................................................. 93 9.6. Sistema de instalações elétricas prediais e Sistema de Proteção contra Descargas Atmosféricas (SPDA) ....................................................................... 106 9.7 Sistema Hidráulico ...................................................................................... 127 9.8 Sistema de Instalações de gás ..................................................................... 146 9.9 Sistema de impermeabilização..................................................................... 153 9.10 Sistema de combate a incêndio ................................................................. 159 9.12 PAISAGISMO ......................................................................................... 241 9.13 Controle de pragas urbanas .................................................................... 252 9.14 Equipamentos de lazer ........................................................................... 272 9.15 Sistema de cobertura.............................................................................. 276 9.16. Acessibilidade e Setorização..................................................................... 280 9.17 Sistema de Condições Sanitárias ............................................................... 283 9.18 Cozinhas Profissionais.............................................................................. 285 9.19 SISTEMAS AUXILIARES ...................................................................... 287 10 - Acessibilidade................................................................................................ 291 10.1 Aplicação da Acessibilidade na Cidade de São Paulo................................. 293 10. 2. Desenho Universal................................................................................... 295 10.3 . Locais de Reunião – Item 8.2 da NBR 9050/04........................................ 304 3) Parte: Avaliação Industrial: Máquinas e Equipamentos ..................................... 316 0. OBJETIVO DA 3ª PARTE:........................................................................... 316 1. A AVALIAÇÃO ........................................................................................... 316 2. PREÇO, CUSTO, MERCADO, VALOR E UTILIDADE.............................. 320 3. LAUDO DE AVALIAÇÃO .......................................................................... 326 4. UNIDADES LEGAIS DE MEDIDA ............................................................. 329 5. TÓPICOS DE MATEMÁTICA FINANCEIRA ............................................ 333 6. CRITÉRIOS PARA DEPRECIAÇÃO FÍSICA DE BENS............................. 336 Elaborado por: Analisado por: Professor : Marcelo Gandra Falcone Alessandra Aparecida Vieira Marcelo Gandra Falcone QUANDO IMPRESSO CONSIDERAR PIRATARIA - CÓPIA NÃO AUTORIZADA
  • 3.
    UNINOVE Rev. B Engenharia deAvaliações e Perícias Manutenção Predial e Avaliação de Máquinas e Equipamentos 16/07/2011 Folha 3/424 7. METODOLOGIAS PARA AVALIAÇÃO DE MÁQUINAS E EQUIPAMENTOS............................................................................................ 340 8. AUTOS DE AVALIAÇÃO ........................................................................... 355 Referências bibliográficas ..................................................................................... 357 Apêndice 1 - LEGISLAÇÃO PERTINENTE ........................................................ 360 APENDICE 2 - NORMAS ABNT _ NBR POR ASSUNTO:................................. 376 APENDICE 3 - CORPO DE BOMBEIROS .......................................................... 403 APENDICE 4 – NR´s DO MTE ............................................................................ 406 APENDICE 5 – Normas Eng Civil........................................................................ 411 LISTA DE ILUSTRAÇÕES Figura 1 - Inspeção Predial; in “ASPECTOS PRÁTICOS DA INSPEÇÃO PREDIAL E MANUTENÇÃO” - autor: Flávia Zoéga Andreatta Pujadas. Apresentação da ARCHEO Eng. Ass. - Julho/2005 no Primeiro Seminário de Inspeção e Manutenção Predial da P&M. Fonte http://www.ibapesp.org.br/arquivos/aspectos.pdf ........................................................................... 15 Figura 2 - Finalidades da Inspeção Predial; in “ASPECTOS PRÁTICOS DA INSPEÇÃO PREDIAL E MANUTENÇÃO” - autor: Flávia Zoéga Andreatta Pujadas. Apresentação da ARCHEO Eng. Ass. - Julho/2005 no Primeiro Seminário de Inspeção e Manutenção Predial da P&M. Fonte http://www.ibapesp.org.br/arquivos/aspectos.pdf ........................................................................... 17 Elaborado por: Analisado por: Professor : Marcelo Gandra Falcone Alessandra Aparecida Vieira Marcelo Gandra Falcone QUANDO IMPRESSO CONSIDERAR PIRATARIA - CÓPIA NÃO AUTORIZADA
  • 4.
    UNINOVE Rev. B Engenharia deAvaliações e Perícias Manutenção Predial e Avaliação de Máquinas e Equipamentos 16/07/2011 Folha 4/424 Figura 3 – Fotografia em banheiro de Hotel da Cracolandia em 22/07/2009 ................ 23 Figura 4 - Nivel de Inspeção; in “PALESTRA DE INSPEÇÃO PREDIAL” - autor: Flávia Zoéga Andreatta Pujadas. Apresentação da ARCHEO Eng. Ass. OUTUBRO/2008 no IBAPE, FORUM DE INSPEÇÃO DE ESTADIOS. Fonte http://www.ibape-sp.org.br/arquivos/ .................................................................. 24 Figura 5 - Responsabilidades; in “INSPEÇÃO PREDIAL: FERRAMENTA NA GESTÃO DE ATIVOS” - autor: Flávia Zoéga Andreatta Pujadas. Apresentação da ARCHEO Eng. Ass. – novembro de 2007 Seminário de Inspeção e Manutenção Predial CREA AM. Fonte: http://www.crea-am.org.br/src/site/ ........................... 25 Figura 6 - Diagrama das Anomalias; in “INSPEÇÃO PREDIAL: FERRAMENTA NA GESTÃO DE ATIVOS” - autor: Flávia Zoéga Andreatta Pujadas. Apresentação da ARCHEO Eng. Ass. – novembro de 2007 Seminário de Inspeção e Manutenção Predial CREA AM. Fonte: http://www.crea-am.org.br/src/site/ ........................... 26 Figura 7 - Diagrama das Falhas; in “INSPEÇÃO PREDIAL: FERRAMENTA NA GESTÃO DE ATIVOS” - autor: Flávia Zoéga Andreatta Pujadas. Apresentação da ARCHEO Eng. Ass. – novembro de 2007 Seminário de Inspeção e Manutenção Predial CREA AM. Fonte: http://www.crea-am.org.br/src/site/ ........................... 27 Figura 8 - Dados sobre Edificações; in “PALESTRA DE INSPEÇÃO PREDIAL” autor: Flávia Zoéga Andreatta Pujadas. Apresentação da ARCHEO Eng. Ass. OUTUBRO/2008 no IBAPE, FORUM DE INSPEÇÃO DE ESTADIOS. Fonte http://www.ibape-sp.org.br/arquivos/ .................................................................. 28 Figura 9 – Defeitos endógenos na construção - Aristides Athayde Cordeiro Termo De Garantia E Manual Da Edificação Curitiba, Sinduscon Pr Janeiro De 2001 fonte www.sindusconpr.com.br/.../20090401150424Manual_proprietario.doc............. 31 Figura 10 – Vícios aparentes ou de fácil constatação - ARISTIDES ATHAYDE CORDEIRO TERMO DE GARANTIA E MANUAL DA EDIFICAÇÃO CURITIBA, SINDUSCON PR JANEIRO DE 2001 fonte www.sindusconpr.com.br/.../20090401150424Manual_proprietario.doc ... 32 Figura 11– Vícios rebiditórios ou ocultos - ARISTIDES ATHAYDE CORDEIRO TERMO DE GARANTIA E MANUAL DA EDIFICAÇÃO CURITIBA, SINDUSCON PR JANEIRO DE 2001 fonte www.sindusconpr.com.br/.../20090401150424Manual_proprietario.doc ... 32 Figura 12 - Responsabilidades; in “INSPEÇÃO PREDIAL: FERRAMENTA NA GESTÃO DE ATIVOS” - autor: Flávia Zoéga Andreatta Pujadas. Apresentação da ARCHEO Eng. Ass. – novembro de 2007 Seminário de Inspeção e Manutenção Predial CREA AM. Fonte: http://www.crea-am.org.br/src/site/ ........................... 37 Figura 13– Exemplos de falência estrutural em incêndios – Cartilha CONTRU 2, Prefeitura da Cidade de São Paulo, Secretaria da Habitação Dez 2008................. 37 Figura 14 - Manutenção – Perda de Valor; in “PALESTRA DE INSPEÇÃO PREDIAL” - autor: Flávia Zoéga Andreatta Pujadas. Apresentação da ARCHEO Eng. Ass. - OUTUBRO/2008 no IBAPE, FORUM DE INSPEÇÃO DE ESTADIOS. Fonte http://www.ibape-sp.org.br/arquivos/ .................................... 39 Figura 15 - ; in “PALESTRA DE INSPEÇÃO PREDIAL” - autor: Flávia Zoéga Andreatta Pujadas. Apresentação da ARCHEO Eng. Ass. - Novembro/200p no IBAPE, Curso de Inspeção Predial em Estádios de Futebol. Fonte http://www.ibape-sp.org.br/arquivos/ .................................................................. 40 Elaborado por: Analisado por: Professor : Marcelo Gandra Falcone Alessandra Aparecida Vieira Marcelo Gandra Falcone QUANDO IMPRESSO CONSIDERAR PIRATARIA - CÓPIA NÃO AUTORIZADA
  • 5.
    UNINOVE Rev. B Engenharia deAvaliações e Perícias Manutenção Predial e Avaliação de Máquinas e Equipamentos 16/07/2011 Folha 5/424 Figura 16 - Custos de Manutenção; in “ASPECTOS PRÁTICOS DA INSPEÇÃO PREDIAL E MANUTENÇÃO” - autor: Flávia Zoéga Andreatta Pujadas. Apresentação da ARCHEO Eng. Ass. - Julho/2005 no Primeiro Seminário de Inspeção e Manutenção Predial da P&M. Fonte http://www.ibapesp.org.br/arquivos/aspectos.pdf ........................................................................... 41 Figura 17 - Visão tri-dimensional da Inspeção; in “INSPEÇÃO PREDIAL: FERRAMENTA NA GESTÃO DE ATIVOS” - autor: Flávia Zoéga Andreatta Pujadas. Apresentação da ARCHEO Eng. Ass. – novembro de 2007 Fonte: http://www.crea-am.org.br/src/site/ ..................................................................... 42 Figura 18 – Vistoria Contru 2 ao Teatro Municipal de São Paulo em 24 de setembro de 2008.................................................................................................................... 45 Figura 20 – Vistoria Contru 2 ao Grande Premio São Paulo Indy 300 em 14 de abril de 2009.................................................................................................................... 60 Figura 21 – Vistoria Contru 2 ao Grande Premio São Paulo Indy 300 em 14 de abril de 2009.................................................................................................................... 60 Figura 22 – Esforços Verticais - IBAPE –SP, PUJADAS, F.Z.A.; GOMIDE, T.L.F.; FAGUNDES, J.C.P. e OUTROS, Inspeção Predial –Check-Up Predial: Guia da Boa Prevenção. São Paulo: Leud, 2009................................................................ 62 Figura 23 – Esforços Difusos - IBAPE –SP, PUJADAS, F.Z.A.; GOMIDE, T.L.F.; FAGUNDES, J.C.P. e OUTROS, Inspeção Predial –Check-Up Predial: Guia da Boa Prevenção. São Paulo: Leud, 2009................................................................ 62 Figura 24 – Fundações - IBAPE –SP, PUJADAS, F.Z.A.; GOMIDE, T.L.F.; FAGUNDES, J.C.P. e OUTROS, Inspeção Predial –Check-Up Predial: Guia da Boa Prevenção. São Paulo: Leud, 2009................................................................ 63 Figura 25 – Fundações - IBAPE –SP, PUJADAS, F.Z.A.; GOMIDE, T.L.F.; FAGUNDES, J.C.P. e OUTROS, Inspeção Predial –Check-Up Predial: Guia da Boa Prevenção. São Paulo: Leud, 2009................................................................ 63 Figura 26 – Fundações Rasas - IBAPE –SP, PUJADAS, F.Z.A.; GOMIDE, T.L.F.; FAGUNDES, J.C.P. e OUTROS, Inspeção Predial –Check-Up Predial: Guia da Boa Prevenção. São Paulo: Leud, 2009................................................................ 64 Figura 27 – Fundações Profundas - IBAPE –SP, PUJADAS, F.Z.A.; GOMIDE, T.L.F.; FAGUNDES, J.C.P. e OUTROS, Inspeção Predial –Check-Up Predial: Guia da Boa Prevenção. São Paulo: Leud, 2009................................................................ 64 Figura 28 – Contenções Confrontantes - IBAPE –SP, PUJADAS, F.Z.A.; GOMIDE, T.L.F.; FAGUNDES, J.C.P. e OUTROS, Inspeção Predial –Check-Up Predial: Guia da Boa Prevenção. São Paulo: Leud, 2009. ................................................. 65 Figura 29 – Esforços Distribuídos ao longo da Supereficie - IBAPE –SP, PUJADAS, F.Z.A.; GOMIDE, T.L.F.; FAGUNDES, J.C.P. e OUTROS, Inspeção Predial – Check-Up Predial: Guia da Boa Prevenção. São Paulo: Leud, 2009..................... 66 Figura 30 – Controle de Lesão - IBAPE –SP, PUJADAS, F.Z.A.; GOMIDE, T.L.F.; FAGUNDES, J.C.P. e OUTROS, Inspeção Predial –Check-Up Predial: Guia da Boa Prevenção. São Paulo: Leud, 2009................................................................ 69 Figura 31 – Acomodação da Estrutura - IBAPE –SP, PUJADAS, F.Z.A.; GOMIDE, T.L.F.; FAGUNDES, J.C.P. e OUTROS, Inspeção Predial –Check-Up Predial: Guia da Boa Prevenção. São Paulo: Leud, 2009. ................................................. 69 Elaborado por: Analisado por: Professor : Marcelo Gandra Falcone Alessandra Aparecida Vieira Marcelo Gandra Falcone QUANDO IMPRESSO CONSIDERAR PIRATARIA - CÓPIA NÃO AUTORIZADA
  • 6.
    UNINOVE Rev. B Engenharia deAvaliações e Perícias Manutenção Predial e Avaliação de Máquinas e Equipamentos 16/07/2011 Folha 6/424 Figura 32 – Ausência de Verga - IBAPE –SP, PUJADAS, F.Z.A.; GOMIDE, T.L.F.; FAGUNDES, J.C.P. e OUTROS, Inspeção Predial –Check-Up Predial: Guia da Boa Prevenção. São Paulo: Leud, 2009................................................................ 70 Figura 33 – Esmagamento - IBAPE –SP, PUJADAS, F.Z.A.; GOMIDE, T.L.F.; FAGUNDES, J.C.P. e OUTROS, Inspeção Predial –Check-Up Predial: Guia da Boa Prevenção. São Paulo: Leud, 2009................................................................ 70 Figura 34 – Rotação - IBAPE –SP, PUJADAS, F.Z.A.; GOMIDE, T.L.F.; FAGUNDES, J.C.P. e OUTROS, Inspeção Predial –Check-Up Predial: Guia da Boa Prevenção. São Paulo: Leud, 2009......................................................................................... 70 Figura 35 – Escorregamento de Solo - IBAPE –SP, PUJADAS, F.Z.A.; GOMIDE, T.L.F.; FAGUNDES, J.C.P. e OUTROS, Inspeção Predial –Check-Up Predial: Guia da Boa Prevenção. São Paulo: Leud, 2009. ................................................. 71 Figura 36 – Erosão nas Fundações - IBAPE –SP, PUJADAS, F.Z.A.; GOMIDE, T.L.F.; FAGUNDES, J.C.P. e OUTROS, Inspeção Predial –Check-Up Predial: Guia da Boa Prevenção. São Paulo: Leud, 2009................................................................ 71 Figura 37 – Cisalhamento por esforços externos - IBAPE –SP, PUJADAS, F.Z.A.; GOMIDE, T.L.F.; FAGUNDES, J.C.P. e OUTROS, Inspeção Predial –Check-Up Predial: Guia da Boa Prevenção. São Paulo: Leud, 2009...................................... 71 Figura 38 - Vista de uma junta de dilatação estrutural com infiltrações de água, além de deterioração estrutural. Edifício com aproximadamente 30 anos. ......................... 74 Figura 39 – Queda parcial de Parede estrutural – Foto Contru 2 .................................. 81 Figura 40 – IBAPE –SP, PUJADAS, F.Z.A.; GOMIDE, T.L.F.; FAGUNDES, J.C.P. e OUTROS, Inspeção Predial –Check-Up Predial: Guia da Boa Prevenção. São Paulo: Leud, 2009. .............................................................................................. 87 Figura 41 – Revestimento Interno de Edificação Comercial em São Paulo – Foto Contru 2 - 2010.............................................................................................................. 88 Figura 42 – Pintura Artística em Edificação em São Paulo – Foto Contru 2 - 2008...... 92 Figura 43 –Esquadrias- IBAPE –SP, PUJADAS, F.Z.A.; GOMIDE, T.L.F.; FAGUNDES, J.C.P. e OUTROS, Inspeção Predial –Check-Up Predial: Guia da Boa Prevenção. São Paulo: Leud, 2009................................................................ 94 Figura 44 – Esquadrias - IBAPE –SP, PUJADAS, F.Z.A.; GOMIDE, T.L.F.; FAGUNDES, J.C.P. e OUTROS, Inspeção Predial –Check-Up Predial: Guia da Boa Prevenção. São Paulo: Leud, 2009................................................................ 95 Figura 45 – Entrada de energia - IBAPE –SP, PUJADAS, F.Z.A.; GOMIDE, T.L.F.; FAGUNDES, J.C.P. e OUTROS, Inspeção Predial –Check-Up Predial: Guia da Boa Prevenção. São Paulo: Leud, 2009.............................................................. 106 Figura 46 – Distribuição de Energia - IBAPE –SP, PUJADAS, F.Z.A.; GOMIDE, T.L.F.; FAGUNDES, J.C.P. e OUTROS, Inspeção Predial –Check-Up Predial: Guia da Boa Prevenção. São Paulo: Leud, 2009. ............................................... 107 Figura 47 – Grandes Incêndios de São Paulo............................................................. 108 Figura 48 – “Gambiarras” – Cartilha do CONTRU em SCI....................................... 111 Figura 48 - Benjamin - IBAPE –SP, PUJADAS, F.Z.A.; GOMIDE, T.L.F.; FAGUNDES, J.C.P. e OUTROS, Inspeção Predial –Check-Up Predial: Guia da Boa Prevenção. São Paulo: Leud, 2009.............................................................. 117 Figura 49 – Tipo de para raios – Cartilha do CONTRU em SCI ............................... 121 Elaborado por: Analisado por: Professor : Marcelo Gandra Falcone Alessandra Aparecida Vieira Marcelo Gandra Falcone QUANDO IMPRESSO CONSIDERAR PIRATARIA - CÓPIA NÃO AUTORIZADA
  • 7.
    UNINOVE Rev. B Engenharia deAvaliações e Perícias Manutenção Predial e Avaliação de Máquinas e Equipamentos 16/07/2011 Folha 7/424 Figura 50 – SPDA - IBAPE –SP, PUJADAS, F.Z.A.; GOMIDE, T.L.F.; FAGUNDES, J.C.P. e OUTROS, Inspeção Predial –Check-Up Predial: Guia da Boa Prevenção. São Paulo: Leud, 2009....................................................................................... 122 Figura 51 – Principiuos de Drenagem - IBAPE –SP, PUJADAS, F.Z.A.; GOMIDE, T.L.F.; FAGUNDES, J.C.P. e OUTROS, Inspeção Predial –Check-Up Predial: Guia da Boa Prevenção. São Paulo: Leud, 2009. ............................................... 130 Figura 52 – Ramais de esgoto - IBAPE –SP, PUJADAS, F.Z.A.; GOMIDE, T.L.F.; FAGUNDES, J.C.P. e OUTROS, Inspeção Predial –Check-Up Predial: Guia da Boa Prevenção. São Paulo: Leud, 2009.............................................................. 131 Figura 53 – Cuidados com a Limpeza da Caixa dágua site sabesp em 09/2010. ......... 140 Figura 54 –Pia- IBAPE –SP, PUJADAS, F.Z.A.; GOMIDE, T.L.F.; FAGUNDES, J.C.P. e OUTROS, Inspeção Predial –Check-Up Predial: Guia da Boa Prevenção. São Paulo: Leud, 2009....................................................................................... 143 Figura 55 –Torneira- IBAPE –SP, PUJADAS, F.Z.A.; GOMIDE, T.L.F.; FAGUNDES, J.C.P. e OUTROS, Inspeção Predial –Check-Up Predial: Guia da Boa Prevenção. São Paulo: Leud, 2009....................................................................................... 144 Figura 56 – Chuveiro- IBAPE –SP, PUJADAS, F.Z.A.; GOMIDE, T.L.F.; FAGUNDES, J.C.P. e OUTROS, Inspeção Predial –Check-Up Predial: Guia da Boa Prevenção. São Paulo: Leud, 2009.............................................................. 144 Figura 57 – GLP – Recomendações da Cartilha do CONTRU. .................................. 151 Figura 58 –recomendações de Contratação –SP, PUJADAS, F.Z.A.; GOMIDE, T.L.F.; FAGUNDES, J.C.P. e OUTROS, Inspeção Predial –Check-Up Predial: Guia da Boa Prevenção. São Paulo: Leud, 2009.............................................................. 158 Figura 59 – Ventilação - IBAPE –SP, PUJADAS, F.Z.A.; GOMIDE, T.L.F.; FAGUNDES, J.C.P. e OUTROS, Inspeção Predial –Check-Up Predial: Guia da Boa Prevenção. São Paulo: Leud, 2009.............................................................. 161 Figura 59 –Escadas- IBAPE –SP, PUJADAS, F.Z.A.; GOMIDE, T.L.F.; FAGUNDES, J.C.P. e OUTROS, Inspeção Predial –Check-Up Predial: Guia da Boa Prevenção. São Paulo: Leud, 2009....................................................................................... 166 Figura 60 – Escadas- IBAPE –SP, PUJADAS, F.Z.A.; GOMIDE, T.L.F.; FAGUNDES, J.C.P. e OUTROS, Inspeção Predial –Check-Up Predial: Guia da Boa Prevenção. São Paulo: Leud, 2009....................................................................................... 167 Figura 61 –Escadas- IBAPE –SP, PUJADAS, F.Z.A.; GOMIDE, T.L.F.; FAGUNDES, J.C.P. e OUTROS, Inspeção Predial –Check-Up Predial: Guia da Boa Prevenção. São Paulo: Leud, 2009....................................................................................... 167 Figura 62 –Escadas- IBAPE –SP, PUJADAS, F.Z.A.; GOMIDE, T.L.F.; FAGUNDES, J.C.P. e OUTROS, Inspeção Predial –Check-Up Predial: Guia da Boa Prevenção. São Paulo: Leud, 2009....................................................................................... 168 Figura 63 –Escadas- IBAPE –SP, PUJADAS, F.Z.A.; GOMIDE, T.L.F.; FAGUNDES, J.C.P. e OUTROS, Inspeção Predial –Check-Up Predial: Guia da Boa Prevenção. São Paulo: Leud, 2009....................................................................................... 168 Figura 64 –Escadas- IBAPE –SP, PUJADAS, F.Z.A.; GOMIDE, T.L.F.; FAGUNDES, J.C.P. e OUTROS, Inspeção Predial –Check-Up Predial: Guia da Boa Prevenção. São Paulo: Leud, 2009....................................................................................... 169 Elaborado por: Analisado por: Professor : Marcelo Gandra Falcone Alessandra Aparecida Vieira Marcelo Gandra Falcone QUANDO IMPRESSO CONSIDERAR PIRATARIA - CÓPIA NÃO AUTORIZADA
  • 8.
    UNINOVE Rev. B Engenharia deAvaliações e Perícias Manutenção Predial e Avaliação de Máquinas e Equipamentos 16/07/2011 Folha 8/424 Figura 65 –Escadas- IBAPE –SP, PUJADAS, F.Z.A.; GOMIDE, T.L.F.; FAGUNDES, J.C.P. e OUTROS, Inspeção Predial –Check-Up Predial: Guia da Boa Prevenção. São Paulo: Leud, 2009....................................................................................... 169 Figura 66 –Escadas- IBAPE –SP, PUJADAS, F.Z.A.; GOMIDE, T.L.F.; FAGUNDES, J.C.P. e OUTROS, Inspeção Predial –Check-Up Predial: Guia da Boa Prevenção. São Paulo: Leud, 2009....................................................................................... 171 Figura 67 –Escadas- IBAPE –SP, PUJADAS, F.Z.A.; GOMIDE, T.L.F.; FAGUNDES, J.C.P. e OUTROS, Inspeção Predial –Check-Up Predial: Guia da Boa Prevenção. São Paulo: Leud, 2009....................................................................................... 171 Figura 68 –Extintores - IBAPE –SP, PUJADAS, F.Z.A.; GOMIDE, T.L.F.; FAGUNDES, J.C.P. e OUTROS, Inspeção Predial –Check-Up Predial: Guia da Boa Prevenção. São Paulo: Leud, 2009.............................................................. 181 Figura 69 –Uso de Extintores – Cartilha do CONTRU. ............................................. 182 Figura 70 – Hidrantes e Mangotinhos – Cartilha do Contru. ...................................... 183 Figura 71 – Hidrantes - IBAPE –SP, PUJADAS, F.Z.A.; GOMIDE, T.L.F.; FAGUNDES, J.C.P. e OUTROS, Inspeção Predial –Check-Up Predial: Guia da Boa Prevenção. São Paulo: Leud, 2009.............................................................. 185 Figura 72 Sensor misto Fumaça e Temperatura – Fotografia CONTRU 2010............ 186 Figura 73 – Bloco autônomo desligado da tomada..................................................... 189 Figura 76 –Elevador convencional- IBAPE –SP, PUJADAS, F.Z.A.; GOMIDE, T.L.F.; FAGUNDES, J.C.P. e OUTROS, Inspeção Predial –Check-Up Predial: Guia da Boa Prevenção. São Paulo: Leud, 2009.............................................................. 209 Figura 77 – Elevador Hidráulico - IBAPE –SP, PUJADAS, F.Z.A.; GOMIDE, T.L.F.; FAGUNDES, J.C.P. e OUTROS, Inspeção Predial –Check-Up Predial: Guia da Boa Prevenção. São Paulo: Leud, 2009.............................................................. 210 Figura 78 –Casa de Maquinas - Fotos CONTRU 2010. ............................................ 217 FIGURA – (PRAGAS Urbanas. Disponível em http://www.pragas.com.br. Acesso em: 08 abril 2004).................................................................................................... 255 FIGURA – (PRAGAS Urbanas. Disponível em http://www.pragas.com.br. Acesso em: 08 abril 2004).................................................................................................... 258 FIGURA – (PRAGAS Urbanas. Disponível em http://www.pragas.com.br. Acesso em: 08 abril 2004).................................................................................................... 259 FIGURA – (PRAGAS Urbanas. Disponível em http://www.pragas.com.br. Acesso em: 08 abril 2004).................................................................................................... 260 Elaborado por: Analisado por: Professor : Marcelo Gandra Falcone Alessandra Aparecida Vieira Marcelo Gandra Falcone QUANDO IMPRESSO CONSIDERAR PIRATARIA - CÓPIA NÃO AUTORIZADA
  • 9.
    UNINOVE Rev. B Engenharia deAvaliações e Perícias Manutenção Predial e Avaliação de Máquinas e Equipamentos 16/07/2011 Folha 9/424 LISTA DE ABREVIATURAS E SIGLAS                         ABNT: Associação Brasileira de Normas Técnicas ART: Anotação de Responsabilidade Técnica AVCB:Auto de Verificação do Corpo De Bombeiros AVS: Auto de Verificação e Segurança COE: Código de Obras e Edificações do Município de São Paulo CREA: Circunscrição Regional de Engenharia, Arquitetura e Agronomia. DE: Decreto Estadual nº 38.069, 14/12/93 DM: Decreto Municipal nº 32.329, de 23/09/92 EPUSP: Escola Politécnica da Universidade de São Paulo FAU: Faculdade de Arquitetura e Urbanismo da Universidade de São Paulo FICAM: Ficha de Inscrição no Cadastro de Manutenção de Sistema de Segurança IBAPE/SP: Instituto Brasileiro de Avaliações e Perícias de Engenharia de São Paulo IBC: International Building Code ICBO: International Conference of Buildings Officials IT: Instrução Técnica do Corpo de Bombeiros do Estado de São Paulo NBR: Normas Brasileiras Registradas NFIRS: National Fire Incident Reporting System (EUA) NFPA: National Fire Protection Association NR: Norma Regulamentadora do Ministério do Trabalho e Emprego PPRA: Programa de Prevenção de Riscos Ambientais RIA: Relatório de Inspeção Anual de elevadores SPDA: Atestado do Sistema de Proteção a Descarga Atmosférica UBC: Uniform Building Code UFC: Uniform Fire Code Elaborado por: Analisado por: Professor : Marcelo Gandra Falcone Alessandra Aparecida Vieira Marcelo Gandra Falcone QUANDO IMPRESSO CONSIDERAR PIRATARIA - CÓPIA NÃO AUTORIZADA
  • 10.
    UNINOVE Rev. B Engenharia deAvaliações e Perícias Manutenção Predial e Avaliação de Máquinas e Equipamentos 16/07/2011 Folha 10/424 Inspeção e Manutenção Predial Definições e conceitos de Inspeção e manutenção predial.  Preceitos Legais  Definições, conceitos, critérios, metodologia e classificações de riscos segundo as normas vigentes.  Definições de estado de conservação e suas classificações.  Aspectos legais e aplicabilidade.  Valorização patrimonial desencadeada por ações de manutenção predial  Componentes dos laudos e informações importantes relativas à manutenção e inspeção predial.  Tópicos para check-list da manutenção predial integrada.  Orientações técnicas de anomalias.  Acessibilidade. 1) Definições e Conceitos de Inspeção e Manutenção Predial Vistoria: “Constatação local de fatos, mediante observações criteriosas em um bem e nos elementos e condições que o constituem ou o influenciam”. (NBR 14653-1: Avaliação de bens, da ABNT). Perícia: “Atividade técnica realizada por profissional com qualificação específica, para averiguar e esclarecer fatos, verificar o estado de um bem, apurar as causas que motivaram determinado evento, avaliar bens, seus custos, frutos ou direitos”. (NBR 14653-1: Avaliação de bens, da ABNT). Inspeção: “Avaliação do estado da edificação e de suas partes constituintes, realizada para orientar as atividades de manutenção”. (NBR 5674/99: Manutenção de Edificações, da ABNT). Manutenção “Conjunto de atividades a serem realizadas para conservar ou recuperar a capacidade funcional da edificação e de suas partes constituintes a fim de atender as necessidades e segurança dos seus usuários”. (NBR 5674/99: Manutenção de Edificações, da ABNT). Manual de operação, uso e manutenção “Documento que reúne apropriadamente todas as informações necessárias para orientar as atividades de operação, uso e manutenção da edificação”. (NBR 5674/99: Manutenção de Edificações, da ABNT). Elaborado por: Analisado por: Professor : Marcelo Gandra Falcone Alessandra Aparecida Vieira Marcelo Gandra Falcone QUANDO IMPRESSO CONSIDERAR PIRATARIA - CÓPIA NÃO AUTORIZADA
  • 11.
    UNINOVE Rev. B Engenharia deAvaliações e Perícias Manutenção Predial e Avaliação de Máquinas e Equipamentos 16/07/2011 Folha 11/424 Manutenção são todas as ações necessárias para que um componente, equipamento ou sistema seja conservado ou restaurado, de modo a poder permanecer de acordo com uma condição especificada. A manutenção tem a função de assegurar que todos os ativos cumpram e continuem cumprindo as funções para as quais foram especificadas. A gerência da manutenção é a gestão de todos os ativos, visando a maximização do retorno do investimento nestes ativos. Em linhas gerais podemos dizer que o conjunto de atividades e recursos direcionados para conservar e recuperar sistemas e elementos construtivos, dentro de parâmetros previstos em projeto, em conformidade com as expectativas de usuários e sua segurança. Das características da Manutenção, destacam-se aquelas ligadas aos seus objetivos básicos de recuperação e conservação estes parâmetros são relativos a questões de:  desempenho,  vida útil,  funcionalidade,  operacionalidade,  disponibilidade e  confiabilidade de sistemas e elementos construtivos Dentre essas, afirmamos que a Manutenção não tem como finalidade principal à alteração de uso da edificação à execução de reformas e/ou alterações de sistemas, devido a problemas de concepção ou execução dos empreendimentos. Entretanto nesse sentido, ainda, a Manutenção pode prever e sugerir aspectos de inovações tecnológicas e/ou funcionais, incorrendo em modificações e reformas – modernizações e benfeitorias – a fim de garantir aspectos de vantagem competitiva, econômica, segurança e atendimento as necessidades e expectativas de usuários, normas e legislação. Podemos por exemplo através de observações advindas da boa manutenção racionalizar o uso dos recursos naturais e a preocupação com questões de impacto ambiental e urbano. A Norma da ABNT, NBR 5674- Manutenção de edificações – Procedimentos, que define vários procedimentos para o Sistema de Manutenção. Na introdução desta Norma, já existe alerta para a necessidade da Manutenção, pois “as edificações são o suporte físico para a realização direta ou indireta de todas atividades produtivas, e possuem, portanto, um valor social fundamental.” Ainda importante é a visão de longevidade e durabilidade das edificações. Dispõe a Norma: “é inviável sob o ponto de vista econômico e inaceitável sob o ponto de vista ambiental considerar as edificações como produtos descartáveis, passíveis da simples substituição por novas construções quando seu desempenho atinge níveis inferiores ao exigido pelos seus usuários”. Elaborado por: Analisado por: Professor : Marcelo Gandra Falcone Alessandra Aparecida Vieira Marcelo Gandra Falcone QUANDO IMPRESSO CONSIDERAR PIRATARIA - CÓPIA NÃO AUTORIZADA
  • 12.
    UNINOVE Rev. B Engenharia deAvaliações e Perícias Manutenção Predial e Avaliação de Máquinas e Equipamentos 16/07/2011 Folha 12/424 A Norma da ABNT, NBR 14653-1: Avaliação de bens - Procedimentos gerais, classificam os bens em tangíveis e intangíveis, nesta parte do curso o foco será os bens tangíveis. Dentre os bens tangíveis que serão objetos deste curso, destacam-se entre outros, imóveis, máquinas, equipamentos, veículos, mobiliário e utensílios, acessórios, matérias-primas e outras mercadorias, infraestruturas, instalações, recursos naturais, recursos ambientais. Quanto aos intangíveis, destacam-se entre outros, empreendimentos de base imobiliária, industrial ou rural, fundos de comércio, marcas e patentes. Os Relatórios e Laudos de Vistoria Técnica deverão ser elaborados segundo as disposições da NBR 13.752/96 da ABNT e serem acompanhados da respectiva Anotação de Responsabilidade Técnica – ART. A Vistoria Técnica deverá contemplar um diagnóstico geral do estado de conservação e/ou grau de urgência da correção das anomalias identificadas nas edificações / equipamentos públicos e privados; os pontos sujeitos a recuperação, reparos, restauro, reforma, manutenção ou substituição; as medidas saneadoras a serem utilizadas e suas respectivas metodologias; os prazos máximos para conclusão das medidas saneadoras. Na Prefeitura Municipal de São Paulo o Técnico deve atender ao DECRETO 41.534 – 20/12/2001: “Art. 4. - O servidor que integrar o corpo fiscalizador será responsável por todos os atos praticados no decorrer da ação fiscalizatória e, em especial, pelos dados consignados em autos, relatórios, termos e outros documentos equivalentes. Art. 9. - Nenhum agente fiscalizador poderá exercer suas atribuições sem exibir documento de identificação fornecido pela Administração Municipal, devendo ser-lhe permitido imediato ingresso no local objeto da vistoria”. As Vistoria Técnica são realizadas por solicitação, por denuncia, ou nos processos de Autorização, Alvarás, Revalidação de Alvarás (nestes casos o técnico analisa junto com a chefia a necessidade de vistoria técnica). Por recomendação é interessante que o inspetor tome alguns cuidados em analogia ao Auditor da qualidade / ambiental, e para tanto basta usar a Norma NBR ISO 19011 - Diretrizes para auditorias de sistema de gestão da qualidade e/ou ambiental, em seu capitulo 6 – Atividades de Auditoria , fornece orientação sobre a realização das auditorias de sistemas de gestão da qualidade e/ou ambiental, incluindo a seleção de equipes de auditoria. No lugar de auditor basta ler “Inspetor” e no lugar de equipe auditora equipe de inspetores multidisciplinar sem esquecer que a realização das vistorias de engenharia ou inspeções prediais é de responsabilidade e da exclusiva competência dos profissionais, Engenheiros e Arquitetos, legalmente habilitados pelos Conselhos Regionais de Engenharia, Arquitetura e Agronomia CREA, de Elaborado por: Analisado por: Professor : Marcelo Gandra Falcone Alessandra Aparecida Vieira Marcelo Gandra Falcone QUANDO IMPRESSO CONSIDERAR PIRATARIA - CÓPIA NÃO AUTORIZADA
  • 13.
    UNINOVE Rev. B Engenharia deAvaliações e Perícias Manutenção Predial e Avaliação de Máquinas e Equipamentos 16/07/2011 Folha 13/424 acordo com a Lei Federal nº 5.194, de 21 de dezembro de 1966, e resoluções do Confea. Recomenda-se equipe multidisciplinar mínima, formada por Engenheiro Civil ou Arquiteto e Engenheiro Eletricista, com formação profissional plena e comprovada mediante a apresentação de Acervo Técnico registrado pelo Sistema Confea/Crea. Reescrevendo a Norma NBR ISO 19011 capitulo 4, transformando auditoria em perícia teremos os seguintes princípios relacionados a Inspetores e Peritos: a) Conduta ética: o fundamento do profissionalismo. Confiança, integridade, confidencialidade e discrição são essenciais para diligenciar e elaborar os Laudos. b) Apresentação justa: a obrigação de reportar com veracidade e exatidão. Constatações de vistorias, conclusões de vistorias e os Laudos refletem verdadeiramente e com precisão as atividades da diligencia. Obstáculos significantes encontrados durante a diligencia e opiniões divergentes não resolvidas entre a equipe de vistoria e o vistoriado deverão ser relatadas. c) Devido cuidado profissional: a aplicação de diligência e julgamento no relatório / Laudo Auditores pratiquem o cuidado necessário considerando a importância da tarefa que eles executam e a confiança colocada neles pelos clientes de auditoria e outras partes interessadas. Ter a competência necessária é um fator importante. Outros princípios se relacionam à auditoria, que é por definição independente e sistemática. d) Independência: a base para a imparcialidade da vistoria e objetividade das conclusões. Os peritos deverão ser preferencialmente independentes, ou seja, não ter nenhum comprometimento com a edificação ou pessoas que sobre ela representam algum interesse, ficando assim livres de tendência e conflito de interesse. Peritos devem mantêr um estado de mente aberta ao longo do processo de vistoria para assegurar que as constatações e conclusões serão baseadas somente nas evidências objetivas constatadas e ou consignadas. e) Abordagem baseada em evidência: o método racional para alcançar conclusões de vistorias confiáveis e reproduzíveis em um processo sistemático de perícia. Evidência de vistoria tem que ser verificável. É baseada em amostras das informações disponíveis, uma vez que uma vistoria é realizada durante um período finito de tempo e com recursos finitos. O uso apropriado de amostragem está intimamente relacionado com a confiança que pode ser colocada nas conclusões e nos laudos. Para atuar como perito judicial não é necessário prestar concurso público ou realizar pós-graduação, nem estar vinculado a alguma instituição ou emprego oficial. A atividade é de perito judicial é semelhante a do profissional liberal. Elaborado por: Analisado por: Professor : Marcelo Gandra Falcone Alessandra Aparecida Vieira Marcelo Gandra Falcone QUANDO IMPRESSO CONSIDERAR PIRATARIA - CÓPIA NÃO AUTORIZADA
  • 14.
    UNINOVE Rev. B Engenharia deAvaliações e Perícias Manutenção Predial e Avaliação de Máquinas e Equipamentos 16/07/2011 Folha 14/424 Podem ser peritos: os aposentados, os profissionais liberais, os funcionários públicos e os empregados de empresas em geral, desde que suas profissões sejam de curso superior na área de perícia a ser realizada, como as dos: administradores, contadores, economistas, engenheiros, médicos, profissionais ligados ao meio ambiente, profissionais da área de informática, químicos, agrônomos, biólogos arquitetos, entre outras. A realização da Inspeção Predial é de responsabilidade técnica e competência dos profissionais, engenheiros civis e arquitetos, legalmente habilitados junto ao Conselho Regional de Engenharia, Arquitetura e podendo, em função da especificidade do serviço, ser envolvido outros profissionais habilitados – engenheiros eletricistas, engenheiros mecânicos e engenheiros com especialização em segurança do trabalho, que darão continuidade ao desenvolvimento de novos trabalhos. Em linhas gerais, a inspeção analisa as condições de habitabilidade, laboração, ocupação, hospedagem, verificando quanto a condições da estrutura, saúde, segurança contra incêndio, pânico e instalações elétricas, hidráulicas e sanitárias. A norma NBR 14.037 de março de 1998 tem por objetivo delinear o Manual de operação, uso e manutenção das edificações, seu conteúdo e recomendações para elaboração e apresentação do mesmo. O manual de operação, uso e manutenção é o documento que reúne apropriadamente todas as informações necessárias para orientar as atividades de operação, uso e manutenção da edificação. É também o objeto de atenção desta Norma as Técnicas de avaliação pós-ocupação (APC), que têm sido utilizadas para retomar às etapas de projeto e execução as informações sobre as condições reais de apropriação pelos usuários do espaço construído, identificadas a partir de observações das etapas de operação, uso e manutenção. A qualificação da documentação técnica produzida ao longo das etapas de projeto e execução e seu direcionamento para esclarecer dúvidas relativas es etapas de operação, uso e manutenção, sistematizada na forma de manuais de operação, uso e manutenção das edificações tem sido outro instrumento para melhorar a comunicação no processo. O Manual deve apresentar informações sobre procedimentos recomendáveis para inspeções técnicas da edificação. contendo: a) definição da freqüência de inspeções necessárias para componentes, instalações e equipamentos da edificação e da qualificação técnica necessária do responsável pela atividade de inspeção; b) definição de roteiros de inspeções na edificação, com destaque para a observação de itens relacionados à segurança e salubridade, ou críticos ao funcionamento da edificação, descrevendo as condições especiais de acesso necessárias a todos os componentes, instalações e equipamentos não diretamente acessáveis, como a utilização de escadas, andaimes. equipamentos especiais de iluminação e ventilação, etc. Elaborado por: Analisado por: Professor : Marcelo Gandra Falcone Alessandra Aparecida Vieira Marcelo Gandra Falcone QUANDO IMPRESSO CONSIDERAR PIRATARIA - CÓPIA NÃO AUTORIZADA
  • 15.
    UNINOVE Rev. B Engenharia deAvaliações e Perícias Manutenção Predial e Avaliação de Máquinas e Equipamentos 16/07/2011 Folha 15/424 O Manual deve apresentar informações sobre procedimentos recomendáveis para a manutenção da edificação, contendo: a) a especificação de procedimentos gerais de manutenção para a edificação como um todo e procedimentos específicos para a manutenção de componentes, instalações e equipamentos; b) a especificação de um programa de manutenção preventiva de componentes, instalações e equipa mentos relacionados à segurança e salubridade da edificação; c) a identificação de componentes da edificação mais importantes em relação à freqüência ou riscos decorrentes da falta de manutenção, descrevendo as conseqüências prováveis da não realização das atividades de manutenção; d) a recomendação da obrigatória revisão do Manual de operação, uso e manutenção quando da realização de modificações na edificação em relação ao originalmente construído e documentado no Manual. De acordo com o SINDUSCON do Paraná, O Manual da Edificação faz parte das garantias oferecidas pelo Construtor ao adquirente ou usuário do imóvel, em decorrência do estabelecido no Código de Defesa do Consumidor, CDC, artigo 50 e seu parágrafo único: “Art. 50 - A garantia contratual é complementar à legal e será conferida mediante termo escrito. Parágrafo único - O termo de garantia ou equivalente deve ser padronizado e esclarecer, de maneira adequada, em que consiste a mesma garantia, bem como a forma, o prazo e o lugar em que pode ser exercitada e os ônus a cargo do consumidor, devendo ser-lhe entregue, devidamente preenchido pelo fornecedor, no ato do fornecimento, acompanhado de manual de instrução, de instalação e uso de produto em linguagem didática, com ilustrações” Figura 1 - Inspeção Predial; in “ASPECTOS PRÁTICOS DA INSPEÇÃO PREDIAL E MANUTENÇÃO” - autor: Flávia Zoéga Andreatta Pujadas. Apresentação da ARCHEO Eng. Ass. - Julho/2005 no Primeiro Seminário de Inspeção e Manutenção Predial da P&M. Fonte http://www.ibape-sp.org.br/arquivos/aspectos.pdf Elaborado por: Analisado por: Professor : Marcelo Gandra Falcone Alessandra Aparecida Vieira Marcelo Gandra Falcone QUANDO IMPRESSO CONSIDERAR PIRATARIA - CÓPIA NÃO AUTORIZADA
  • 16.
    UNINOVE Rev. B Engenharia deAvaliações e Perícias Manutenção Predial e Avaliação de Máquinas e Equipamentos 16/07/2011 Folha 16/424 2) Preceitos Legais                          Lei Federal Nº. 5.194 de 21/12/1966 que regula o exercício das profissões de Engenheiro, Arquiteto e Engenheiro Agrônomo e dá outras providências; Lei 6.496/77 - Institui a ART na prestação de serviços de engenharia, arquitetura e agronomia e dá outras providências; Lei 9636/98 Dispõe sobre regularização , administração, aforamento e alienação de bens imóveis de domínio da União e dá outras providências; Lei 10406/02 - Novo Código Civil Brasileiro. Resoluções do Conselho Federal de Engenharia, Arquitetura e Agronomia, e particularmente: o Resolução Nº. 205, de 30/09/1971, que adota o Código de Ética Profissional; o Resolução Nº. 218, de 27/06/1973, que fixa as atribuições do Engenheiro, Arquiteto e Agrônomo nas diversas modalidades; o Resolução Nº. 345, de 27/07/1990, que dispõe quanto ao exercício por profissionais de nível superior das atividades de Engenharia de Avaliações e Perícias de Engenharia; Resolução/CEUSO/54/89 - CEUSO de 22/11/89; Resolução 1010 do Confea Código de ética do IBAPE Lei nº 10.671 de 15 de março de 2005, Estatuto do Torcedor, art. 23º Decreto Federal no 6.795, de 16 de março de 2009, que regulamenta o art. 23o da Lei 10.671 Portaria do Ministério dos Esportes no 124 de 17 de julho de 2009, que estabelece os requisitos mínimo a serem contemplados nos laudos técnicos previstos no Decreto Federal no 6.795 Código de obras e Edificações (COE); Leis Complementares ao COE; Decreto 24714 de 7/10/87, 27.011 de 30/09/88; Decreto 24767 de 14/10/87 - Regulamenta o sistema de fiscalização, disposições gerais para utilização de gás combustível n os edifícios e construções em geral; Portaria n° 2364/SAR/88 - publicada no DOM de 29/9/88 Relatório de Danos ambientais Licença da Vigilância Sanitária Leis de Ocupação, Parcelamento e Uso do Solo; Constituição Federal; Código Civil; Código de Processo Civil; Código Penal; Código Comercial; Código de Águas; Elaborado por: Analisado por: Professor : Marcelo Gandra Falcone Alessandra Aparecida Vieira Marcelo Gandra Falcone QUANDO IMPRESSO CONSIDERAR PIRATARIA - CÓPIA NÃO AUTORIZADA
  • 17.
    UNINOVE Engenharia de Avaliaçõese Perícias Manutenção Predial e Avaliação de Máquinas e Equipamentos              Rev. B 16/07/2011 Folha 17/424 Código de Defesa do Consumidor; Código Sanitário Estadual; Legislação Ambiental; Código Florestal; ABNT NBR 12721:1999 Avaliação de custos unitários e preparo de orçamento de construção para incorporação de edifícios em condomínio Procedimento ABNT NBR 14653-1:2001 Avaliação de bens Parte 1: Procedimentos gerais ABNT NBR 14653-2:2004 Avaliação de bens Parte 2: Imóveis urbanos ABNT NBR 14653-3:2004 Avaliação de bens Parte 3: Imóveis rurais ABNT NBR 14653-4:2002 Avaliação de bens - Parte 4: Empreendimentos ABNT NBR 14653-5:2006 Avaliação de bens - Parte 5: Maquinas e Equipamentos Norma Básica de Perícias em Engenharia do IBAPE/SP Glossário de Terminologia Aplicável à Engenharia de Avaliações e Perícias IBAPE/SP-2002 Normas Técnicas Oficiais (NTO): Figura 2 - Finalidades da Inspeção Predial; in “ASPECTOS PRÁTICOS DA INSPEÇÃO PREDIAL E MANUTENÇÃO” autor: Flávia Zoéga Andreatta Pujadas. Apresentação da ARCHEO Eng. Ass. - Julho/2005 no Primeiro Seminário de Inspeção e Manutenção Predial da P&M. Fonte http://www.ibape-sp.org.br/arquivos/aspectos.pdf Elaborado por: Analisado por: Professor : Marcelo Gandra Falcone Alessandra Aparecida Vieira Marcelo Gandra Falcone QUANDO IMPRESSO CONSIDERAR PIRATARIA - CÓPIA NÃO AUTORIZADA
  • 18.
    UNINOVE Rev. B Engenharia deAvaliações e Perícias Manutenção Predial e Avaliação de Máquinas e Equipamentos 16/07/2011 Folha 18/424 3) Definições, conceitos, critérios, metodologia e classificações de riscos segundo as normas vigentes. A INSPEÇÃO PREDIAL, tema atual e de grande importância à sociedade, está sendo discutido e estudado em diversos segmentos do mercado imobiliário, sejam construtoras, incorporadoras, administradoras de condomínios, instituições. Assim como o ser humano necessita avaliar seu estado geral de bem estar físico e psicológico, as edificações necessitam de uma Inspeção Predial periódica, a fim de garantir suas condições e características físicas, funcionais, operacionais e de utilização. A Inspeção Predial, além de ser uma avaliação geral de uma edificação, é fonte de informações à gestão da manutenção, sendo a coleta de dados para a instrução de um plano de manutenção a ser desenvolvido ou já existente. Devem ser solicitadas pelo inspetor predial, documentações administrativas e técnicas, além do próprio plano de manutenção e registros, para serem analisados e considerados junto às orientações técnicas, lembrando, no entanto, que a Inspeção Predial, aqui tratada, não tem como objetivo a “legalização” do edifício junto aos órgãos públicos. A Inspeção Predial associada a planos de manutenção minimiza os desgastes naturais e a depreciação física, reduzindo, inclusive, a obsolescência técnica uma vez que poderá estar ligada a estudos de modernização de sistemas ou da própria edificação, consoante as desconformidades ou anomalias verificadas e analisadas na vistoria e no laudo técnico. Essas desconformidades ou anomalias apontadas na vistoria de Inspeção Predial, voltada à Manutenção, estão relacionadas a questões de desempenho dos sistemas e elementos construtivos, considerando as exigências dos usuários. As exigências dos usuários norteiam os trabalhos de Inspeção Predial, sendo definidas como sendo de: a) Segurança: • Segurança estrutural; • Segurança contra o fogo; • Segurança no uso e operação. Elaborado por: Analisado por: Professor : Marcelo Gandra Falcone Alessandra Aparecida Vieira Marcelo Gandra Falcone QUANDO IMPRESSO CONSIDERAR PIRATARIA - CÓPIA NÃO AUTORIZADA
  • 19.
    UNINOVE Rev. B Engenharia deAvaliações e Perícias Manutenção Predial e Avaliação de Máquinas e Equipamentos 16/07/2011 Folha 19/424 b) Habitabilidade: • Estanqueidade; • Conforto higrotérmico; • Conforto acústico; • Conforto lumínico; • Saúde, higiene e qualidade do ar; • Funcionalidade e acessibilidade; • Conforto tátil. c) Sustentabilidade: • Durabilidade; • Manutenabilidade – facilidade de se fazer a manutenção; • Adequação ambiental O atendimento as necessidades e as exigências dos usuários é uma meta, também, da manutenção predial, sendo esta definida na NBR 5674 – Manutenção de edificações da A.B.N.T..Este atendimento interfere diretamente no sistema de qualidade da manutenção predial e na sua confiabilidade, tal que a Inspeção Predial é fonte de apuração dessas informações, imprescindíveis na elaboração e revisão do plano de manutenção desenvolvido pela gestão predial. A Inspeção Predial também poderá ser contratada como uma vistoria de conformidades não só voltada à elaboração, revisão e atualização de um plano de manutenção predial, mas também como fonte de informações referentes a conformidades: técnicas (envolvendo desempenho e vida útil), funcionais, operacionais, legais, de segurança, de atualização tecnológica, econômicas, etc. Sendo assim, a aplicabilidade de uma Inspeção Predial, variando conforme seu objetivo, pode ser:  Elaboração de planos de manutenção integrada;  Preservação da garantia da construção;  Verificação do estado de conservação;  Estudos de valorização e modernização de imóveis;  Auxílio em transações imobiliárias (compra e venda de imóveis);  Auxílio na gestão condominial (síndico e administradora);  Redução de prêmio de seguro; etc.  Como se faz uma Inspeção Predial? A Inspeção Predial é uma vistoria que necessita de profissional especializado no assunto, com visão sistêmica da edificação, bem como conhecimentos técnicos sobre materiais, sistemas e funcionamentos. Devem ser observados na Inspeção Predial, aspectos de facilidade de manutenção existentes na edificação, sendo que dificuldade de acesso, por Elaborado por: Analisado por: Professor : Marcelo Gandra Falcone Alessandra Aparecida Vieira Marcelo Gandra Falcone QUANDO IMPRESSO CONSIDERAR PIRATARIA - CÓPIA NÃO AUTORIZADA
  • 20.
    UNINOVE Rev. B Engenharia deAvaliações e Perícias Manutenção Predial e Avaliação de Máquinas e Equipamentos 16/07/2011 Folha 20/424 exemplo, impede um bom desenvolvimento de rotinas de manutenção e até mesmo da própria vistoria. A falta de Inspeção Predial com foco na manutenção dificulta verificar, quantificar e priorizar as deficiências nas edificações existentes. Em recentes estatísticas / pesquisas de mercado verificamos à ausência de planos estratégicos ou simples planos de manutenção usados na Manutenção e Conservação dos imóveis, ou seja, a maioria dos sistemas de manutenção são baseados nos elementos de conservação obrigatórios, tais como Ar condicionado, Elevadores e equipamentos de transporte, Bombas, Caldeiras, Geradores de água quente, e Grupo moto-geradores. Além dos aspectos mercadológicos e de ausência de plano de manutenção, há a incidência dos acidentes prediais causados pela negligência de investimentos nessa área. O grau de deterioração dos sistemas e elementos construtivos em sua maioria é avançado, além de precoce, o que impõe aos investidores ou proprietários a necessidade de recuperações dispendiosas e urgentes. Neste sentido, a Inspeção Predial têm ocupado espaço importante como ferramenta na gestão dos ativos imobiliários, já que pode ser empregada na avaliação da Manutenção e Conservação das edificações. Facilita, também, a análise, a compreensão e o ordenamento de investimentos, que são baseados nas medidas para a solução de falhas e anomalias constatadas pela Inspeção Predial, classificadas segundo grau de risco, o que determinam prioridades técnicas para um ajuste de investimentos no plano de manutenção, no plano de reparos e nas modernizações. Assim, o emprego da Inspeção Predial garante a manutenção da vantagem competitiva dos imóveis, auxilia a redução de custos operacionais e de manutenção, diminui o desconhecimento sobre os riscos envolvidos com paralisações de sistemas e eventuais acidentes, bem como reduz os investimentos patrimoniais urgentes. Auxilia, também, a programação de investimentos patrimoniais futuros. Com este enfoque, a Inspeção Predial ganha mais abrangência do que as suas características normativas, quais sejam: simples constatação de falhas ou anomalias, classificações quanto ao grau de risco e elaboração de orientações técnicas. Para a identificação correta de investimentos, sejam esses na Manutenção ou no Plano de Reparos, a Inspeção deverá atentar para a análise de responsabilidades técnicas das deficiências constatadas, consoante a causa e origem das mesmas, além de avaliar se as não-conformidades possuem reparos / investimentos viáveis tecnicamente, sob a ótica da abrangência da Manutenção. Portanto, percebe-se que a Inspeção Predial quando empregada como ferramenta na gestão de ativos, distancia-se em muito de uma simples “Vistoria”. Elaborado por: Analisado por: Professor : Marcelo Gandra Falcone Alessandra Aparecida Vieira Marcelo Gandra Falcone QUANDO IMPRESSO CONSIDERAR PIRATARIA - CÓPIA NÃO AUTORIZADA
  • 21.
    UNINOVE Rev. B Engenharia deAvaliações e Perícias Manutenção Predial e Avaliação de Máquinas e Equipamentos 16/07/2011 Folha 21/424 3.1 DEFINIÇÕES: Para os efeitos desta Curso, aplicam-se as seguintes definições extraídas da Norma ABNT NBR 05674/1999: “3.1 desempenho: Capacidade de atendimento das necessidades dos usuários da edificação. 3.2 edificação: Produto constituído pelo conjunto de elementos definidos e integrados em conformidade com os princípios e técnicas da Engenharia e da Arquitetura para, ao integrar a urbanização, desempenhar funções ambientais em níveis adequados. 3.3 inspeção: Avaliação do estado da edificação e de suas partes constituintes, realizada para orientar as atividades de manutenção. 3.4 manual de operação, uso e manutenção: Documento que reúne apropriadamente todas as informações necessárias para orientar as atividades de operação, uso e manutenção da edificação (NBR 14037:1998 - Manual de operação, uso e manutenção das edificações - Conteúdo e recomendações para elaboração e apresentação). 3.5 manutenção: Conjunto de atividades a serem realizadas para conservar ou recuperar a capacidade funcional da edificação e de suas partes constituintes de atender as necessidades e segurança dos seus usuários. 3.6 necessidades dos usuários: Exigências de segurança, saúde, conforto, adequação ao uso e economia cujo atendimento é condição para realização das atividades previstas no projeto. 3.7 planejamento (dos serviços de manutenção): Elaboração de uma previsão detalhada dos métodos de trabalho, ferramentas e equipamentos necessários, condições especiais de acesso, cronograma de realização e duração dos serviços de manutenção. 3.8 previsão orçamentária: Estimativa do custo para a realização de um programa de manutenção. 3.9 programação (dos serviços de manutenção): Elaboração de um cronograma para a realização dos serviços de manutenção. 3.10 projeto: Descrição gráfica e escrita das características de um serviço ou obra de Engenharia ou de Arquitetura, definindo seus atributos técnicos, econômicos, financeiros e legais. Elaborado por: Analisado por: Professor : Marcelo Gandra Falcone Alessandra Aparecida Vieira Marcelo Gandra Falcone QUANDO IMPRESSO CONSIDERAR PIRATARIA - CÓPIA NÃO AUTORIZADA
  • 22.
    UNINOVE Rev. B Engenharia deAvaliações e Perícias Manutenção Predial e Avaliação de Máquinas e Equipamentos 16/07/2011 Folha 22/424 3.11 proprietário: Pessoa física ou jurídica que tem o direito de dispor da edificação. 3.12 serviço de manutenção: Intervenção realizada sobre a edificação e suas partes constituintes, com a finalidade de conservar ou recuperar a sua capacidade funcional. 3.13 sistema de manutenção: Conjunto de procedimentos organizado para gerenciar os serviços de manutenção. 3.14 usuário: Pessoa física ou jurídica, ocupante permanente ou não permanente da edificação. 3.15 vida útil: Intervalo de tempo ao longo do qual a edificação e suas partes constituintes atendem aos requisitos funcionais para os quais foram projetadas, obedecidos aos planos de operação, uso e manutenção previstos”. 3.2 CONCEITOS: . O INSTITUTO BRASILEIRO DE AVALIAÇÕES E PERÍCIAS DE ENGENHARIA (IBAPE) com a Norma de inspeção predial do IBAPE de 24 de Setembro de 2009, define no seu item 5: “3.2.1. DEFINIÇÕES: Para efeito desta Norma, aplicam-se as definições das normas citadas e as seguintes: 3.2.1.1. INSPEÇÃO PREDIAL É a análise isolada ou combinada das condições técnicas, de uso e de manutenção da edificação. 3.2.1.2. NÍVEL DE INSPEÇÃO PREDIAL Classificação quanto à complexidade da inspeção e a elaboração de seu laudo final, quanto à necessidade do número de profissionais envolvidos e a profundidade nas análises dos fatos. 3.2.1.3. TIPOS DE INSPEÇÃO PREDIAL Define a natureza do elemento construtivo a ser inspecionado. 3.2.1.4. GRAU DE RISCO Critério de classificação das anomalias e falhas constatadas em uma inspeção predial, classificadas considerando o impacto do risco oferecido aos usuários, ao meio ambiente e ao patrimônio, dentro dos limites da inspeção predial. Elaborado por: Analisado por: Professor : Marcelo Gandra Falcone Alessandra Aparecida Vieira Marcelo Gandra Falcone QUANDO IMPRESSO CONSIDERAR PIRATARIA - CÓPIA NÃO AUTORIZADA
  • 23.
    UNINOVE Rev. B Engenharia deAvaliações e Perícias Manutenção Predial e Avaliação de Máquinas e Equipamentos 16/07/2011 Folha 23/424 3.2.1.5. CRÍTICO-IMPACTO IRRECUPERÁVEL É aquele que provoca danos contra a saúde e segurança das pessoas, e meio ambiente, perda excessiva de desempenho e funcionalidade causando possíveis paralisações, aumento excessivo de custo, comprometimento sensível de vida útil e desvalorização acentuada. 3.2.1.6. REGULAR - IMPACTO PARCIALMENTE RECUPERÁVEL É aquele que provoca a perda parcial de desempenho e funcionalidade da edificação sem prejuízo à operação direta de sistemas, deterioração precoce e desvalorização em níveis aceitáveis. 3.2.1.7. MÍNIMO-IMPACTO RECUPERÁVEL É aquele causado por pequenas perdas de desempenho e funcionalidade, principalmente quanto à estética ou atividade programável e planejada, sem incidência ou sem a probabilidade de ocorrência dos riscos relativos aos impactos irrecuperáveis e parcialmente recuperáveis, além de baixo ou nenhum comprometimento do valor imobiliário. 3.2.1.8. LISTA DE VERIFICAÇÃO Conjunto de tópicos a serem fundamentalmente vistoriados, sendo considerado o número mínimo de itens a serem abordados em uma inspeção.Destacam-se nessa listagem, por motivos óbvios, a estrutura, a impermeabilização, as instalações hidráulicas e elétricas, os revestimentos das fachadas, as esquadrias, os revestimentos, os elevadores, o sistema de ar condicionado a cobertura e demais equipamentos, principalmente aqueles relativos a combate a incêndio e SPDA”. Figura 3 – Fotografia em banheiro de Hotel da Cracolandia em 22/07/2009 Elaborado por: Analisado por: Professor : Marcelo Gandra Falcone Alessandra Aparecida Vieira Marcelo Gandra Falcone QUANDO IMPRESSO CONSIDERAR PIRATARIA - CÓPIA NÃO AUTORIZADA
  • 24.
    UNINOVE Rev. B Engenharia deAvaliações e Perícias Manutenção Predial e Avaliação de Máquinas e Equipamentos 16/07/2011 Folha 24/424 3.3 CLASSIFICAÇÕES DAS INSPEÇÕES PREDIAIS QUANTO AO NÍVEL DA INSPEÇÃO A Inspeção Predial poderá estar classificada de acordo com o nível pretendido do inspetor e da finalidade da mesma. 3.3.1 Nível 1 Análises técnicas elaborada por um único profissional habilitado, voltadas a edificações de pequeno porte, com escadarias ou apenas um elevador. 3.3.2 Nível 2 Análises técnicas procedidas por equipe de no mínimo dois profissionais de diversas especialidades, eventualmente com o auxilio de equipamentos e/ou aparelhos, consoante à complexidade dos sistemas construtivos existentes. A Inspeção Predial nesse nível é elaborada por profissionais habilitados em uma ou mais especialidades. 3.3.3 Nível 3 Equivalente aos parâmetros definidos para a inspeção de NÍVEL 2, acrescida de consultoria com as prescrições para a reparação das anomalias e falhas constatadas, ou de consultoria para a melhoria e ajuste dos procedimentos existentes no plano de manutenção. Figura 4 - Nivel de Inspeção; in “PALESTRA DE INSPEÇÃO PREDIAL” - autor: Flávia Zoéga Andreatta Pujadas. Apresentação da ARCHEO Eng. Ass. - OUTUBRO/2008 no IBAPE, FORUM DE INSPEÇÃO DE ESTADIOS. Fonte http://www.ibape-sp.org.br/arquivos/ Elaborado por: Analisado por: Professor : Marcelo Gandra Falcone Alessandra Aparecida Vieira Marcelo Gandra Falcone QUANDO IMPRESSO CONSIDERAR PIRATARIA - CÓPIA NÃO AUTORIZADA
  • 25.
    UNINOVE Rev. B Engenharia deAvaliações e Perícias Manutenção Predial e Avaliação de Máquinas e Equipamentos 16/07/2011 Folha 25/424 3.4 CRITÉRIO e METODOLOGIA Há necessidade de conhecer as definições, conceitos e diferenças no que tange a: falhas e anomalias; causas e origens; conservação, manutenção e reparação; operação e desempenho para a compreensão da abrangência da Inspeção Predial como ferramenta de Gestão. 3.4.1 Critério O critério utilizado para elaboração de laudos de inspeção predial baseia-se na análise do risco oferecido aos usuários, ao meio ambiente e ao patrimônio, diante as condições técnicas, de uso, operação e manutenção da edificação, bem como da natureza da exposição ambiental. A análise do risco consiste na classificação das anomalias e falhas identificadas nos diversos componentes de uma edificação, quanto ao seu grau de risco, relacionado com fatores de manutenção, depreciação, saúde, segurança, funcionalidade, comprometimento de vida útil e perda de desempenho. 3.4.2 Metodologia A metodologia a ser empregada consiste em:  Determinação do nível e tipo de inspeção;  Verificação da documentação;  Obtenção de informações dos usuários, responsáveis, proprietários e gestores das edificações;  Inspeção dos tópicos da listagem de verificação;  Classificação das anomalias e falhas;  Classificação e análise das anomalias e falhas quanto ao grau de risco;  Ordem de prioridades;  Indicação das orientações técnicas;  Classificação do estado de manutenção;  Recomendações gerais e de sustentabilidade;  Tópicos essenciais do laudo;  Responsabilidades. Figura 5 - Responsabilidades; in “INSPEÇÃO PREDIAL: FERRAMENTA NA GESTÃO DE ATIVOS” - autor: Flávia Zoéga Andreatta Pujadas. Apresentação da ARCHEO Eng. Ass. – novembro de 2007 Seminário de Inspeção e Manutenção Predial CREA AM. Fonte: http://www.crea-am.org.br/src/site/ Elaborado por: Analisado por: Professor : Marcelo Gandra Falcone Alessandra Aparecida Vieira Marcelo Gandra Falcone QUANDO IMPRESSO CONSIDERAR PIRATARIA - CÓPIA NÃO AUTORIZADA
  • 26.
    UNINOVE Rev. B Engenharia deAvaliações e Perícias Manutenção Predial e Avaliação de Máquinas e Equipamentos 16/07/2011 Folha 26/424 3.5 CLASSIFICAÇÃO DAS ANOMALIAS E FALHAS A classificação das anomalias e falhas poderá ser indicada nos laudos dos níveis 1 e 2, e deverá ser anotada nos laudo de nível 3. 3.5.1 ANOMALIAS - é o desvio da normalidade, caracterizando uma irregularidade ou ainda apresentada na forma de sintoma, lesão, defeito ou manifestação patológica:  Endógena: execução). Originaria da própria edificação (projeto, materiais e  Exógena: Originaria de fatores externos a edificação, provocados por terceiros ou de mau uso dos sistemas e equipamentos.  Natural: Originaria imprevisíveis).  Funcional: Originaria do uso e degradação ao longo do tempo. de fenômenos da natureza (previsíveis, Figura 6 - Diagrama das Anomalias; in “INSPEÇÃO PREDIAL: FERRAMENTA NA GESTÃO DE ATIVOS” - autor: Flávia Zoéga Andreatta Pujadas. Apresentação da ARCHEO Eng. Ass. – novembro de 2007 Seminário de Inspeção e Manutenção Predial CREA AM. Fonte: http://www.crea-am.org.br/src/site/ Elaborado por: Analisado por: Professor : Marcelo Gandra Falcone Alessandra Aparecida Vieira Marcelo Gandra Falcone QUANDO IMPRESSO CONSIDERAR PIRATARIA - CÓPIA NÃO AUTORIZADA
  • 27.
    UNINOVE Rev. B Engenharia deAvaliações e Perícias Manutenção Predial e Avaliação de Máquinas e Equipamentos 16/07/2011 Folha 27/424 3.5.2 FALHAS. Falha é incorrer em erro, relacionado ao desvio de uma previsão técnica, ou ainda, ligado à interrupção de um processo operacional. A falha está relacionada a procedimentos e processos sem aderência ou executados equivocadamente. Portanto, falha vincula-se a problemas decorrentes de serviços de Manutenção e Operação das edificações:  De Planejamento: Decorrentes de falhas de procedimentos e especificações inadequados do plano de manutenção, sem aderência a questões técnicas, de uso, de operação, de exposição ambiental e, principalmente, de confiabilidade e disponibilidade das instalações, consoante a estratégia de Manutenção. Além dos aspectos de concepção do plano, há falhas relacionadas às periodicidades de execução.  De Execução: Associada à manutenção proveniente de falhas causadas pela execução inadequada de procedimentos e atividades do plano de manutenção, incluindo o uso inadequado dos materiais.  Operacionais: Relativas aos procedimentos inadequados de registros, controles, rondas e demais atividades pertinentes.  Gerenciais: Decorrentes da falta de controle de qualidade dos serviços de manutenção, bem como da falta de acompanhamento de custos da mesma. Figura 7 - Diagrama das Falhas; in “INSPEÇÃO PREDIAL: FERRAMENTA NA GESTÃO DE ATIVOS” - autor: Flávia Zoéga Andreatta Pujadas. Apresentação da ARCHEO Eng. Ass. – novembro de 2007 Seminário de Inspeção e Manutenção Predial CREA AM. Fonte: http://www.crea-am.org.br/src/site/ Elaborado por: Analisado por: Professor : Marcelo Gandra Falcone Alessandra Aparecida Vieira Marcelo Gandra Falcone QUANDO IMPRESSO CONSIDERAR PIRATARIA - CÓPIA NÃO AUTORIZADA
  • 28.
    UNINOVE Rev. B Engenharia deAvaliações e Perícias Manutenção Predial e Avaliação de Máquinas e Equipamentos 16/07/2011 Folha 28/424 3.6 CLASSIFICAÇÃO DO GRAU DE RISCO A classificação quanto ao grau de risco de uma anomalia ou falha deve sempre ser fundamentada. Devem ser considerados os limites e os níveis da Inspeção Predial realizada, em função das anomalias e falhas constatadas na inspeção predial, considerando o impacto do risco oferecido aos usuários, ao meio ambiente e ao patrimônio, dentro dos limites da inspeção predial. Quanto à ordem de prioridades recomenda-se que seja disposta em ordem decrescente quanto ao grau de risco e intensidade das anomalias e falhas, apurada por metodologias técnicas apropriadas (GUT, FMEA, etc.). 3.6.1 RISCO CRÍTICO-IMPACTO IRRECUPERÁVEL É aquele que provoca danos contra a saúde e segurança das pessoas, e meio ambiente, perda excessiva de desempenho e funcionalidade causando possíveis paralisações, aumento excessivo de custo, comprometimento sensível de vida útil e desvalorização acentuada. 3.6.2 RISCO REGULAR - IMPACTO PARCIALMENTE RECUPERÁVEL É aquele que provoca a perda parcial de desempenho e funcionalidade da edificação sem prejuízo à operação direta de sistemas, deterioração precoce e desvalorização em níveis aceitáveis. 3.6.3 RISCO MÍNIMO - IMPACTO RECUPERÁVEL É aquele causado por pequenas perdas de desempenho e funcionalidade, principalmente quanto à estética ou atividade programável e planejada, sem incidência ou sem a probabilidade de ocorrência dos riscos relativos aos impactos irrecuperáveis e parcialmente recuperáveis, além de baixo ou nenhum comprometimento do valor imobiliário. Figura 8 - Dados sobre Edificações; in “PALESTRA DE INSPEÇÃO PREDIAL” - autor: Flávia Zoéga Andreatta Pujadas. Apresentação da ARCHEO Eng. Ass. - OUTUBRO/2008 no IBAPE, FORUM DE INSPEÇÃO DE ESTADIOS. Fonte http://www.ibape-sp.org.br/arquivos/ Elaborado por: Analisado por: Professor : Marcelo Gandra Falcone Alessandra Aparecida Vieira Marcelo Gandra Falcone QUANDO IMPRESSO CONSIDERAR PIRATARIA - CÓPIA NÃO AUTORIZADA
  • 29.
    UNINOVE Rev. B Engenharia deAvaliações e Perícias Manutenção Predial e Avaliação de Máquinas e Equipamentos 16/07/2011 Folha 29/424 4) Definições de estado de conservação e suas classificações. 4.1 CLASSIFICAÇÃO DA QUALIDADE DA MANUTENÇÃO E USO A classificação quanto ao estado de manutenção e condições de uso deve sempre ser fundamentada, considerando os graus de risco e as intensidades das anomalias e, especialmente das falhas encontradas. Além disso, deve ser analisada a condições de regularidade do uso bem como os níveis de aprofundamento da Inspeção Predial realizada, devendo-se indicar uma das seguintes classificações: 4.1.1 – Classificação da Qualidade da Manutenção:  Manutenção Ótima  Manutenção Normal  Manutenção Mínima  Manutenção Deficiente  Manutenção Inexistente 4.1.2 – Classificação das Condições de Uso: A classificação pode indicar a condição de uso regular ou irregular. O uso regular vai permitir que a edificação seja ocupada e utilizada dentro dos parâmetros previstos no projeto, contribuindo para a sua longevidade. Quando o uso é irregular, a edificação estará sujeita a riscos não previstos que poderão comprometer a segurança e habitabilidade. Em relação ao uso, o inspetor predial deverá classificar a edificação: USO REGULAR – Quando a edificação inspecionada encontra-se ocupada e utilizada de acordo com o uso previsto no projeto; USO IREGULAR – Quando a edificação inspecionada encontra-se ocupada e utilizada de forma irregular, com o uso divergente do previsto no projeto; A prioridade na ordem de reparos ou soluções poderá se basear nessa(s) classificação (ões), quanto ao estado de manutenção geral do empreendimento e condições de uso; não impedindo que se recomende eventual interdição em parte da edificação; visando garantir a integridade dos usuários; quando do surgimento de situações de grau de risco crítico, ou identificação de uso irregular, em setores específicos e destacados do restante do empreendimento inspecionado. Elaborado por: Analisado por: Professor : Marcelo Gandra Falcone Alessandra Aparecida Vieira Marcelo Gandra Falcone QUANDO IMPRESSO CONSIDERAR PIRATARIA - CÓPIA NÃO AUTORIZADA
  • 30.
    UNINOVE Rev. B Engenharia deAvaliações e Perícias Manutenção Predial e Avaliação de Máquinas e Equipamentos 16/07/2011 Folha 30/424 5) Aspectos legais e aplicabilidade. Os problemas construtivos da obra nova são de responsabilidade dos construtores e incorporadores, conforme o art.12 do Código do Consumidor, que determina a reparação pelos danos causados aos consumidores por defeitos de projeto, fabricação, construção e montagem de seus produtos, bem como por informações insuficientes ou inadequadas sobre sua utilização e riscos. As anomalias de origem endógenas devem ser reparadas pelos construtores e incorporadores. O Termo de Garantia Contratual que, por sua vez, é complementar à garantia legal especificada no Artigo 1.245 do Código Civil Brasileiro: “Art. 1245 - Nos contratos de empreitada de edifícios ou outras construções consideráveis, o empreiteiro de materiais e execução responderá, durante 5 (cinco) anos, pela solidez e segurança do trabalho, assim em razão dos materiais, como do solo, exceto, quanto a este, se, não o achando firme, preveniu em tempo o dono da obra”. Este prazo de garantia legal, que no caso dos edifícios é também chamado de garantia qüinqüenal, refere-se exclusivamente aos casos de solidez e segurança da edificação, ou seja, ocorrências que possam vir a causar ameaça à integridade física de pessoas. São ocorrências que se enquadram na definição de defeito (ver Figura 9), estabelecido no CDC: “Art. 12 - O fabricante, o produtor, o construtor, nacional ou estrangeiro, e o importador respondem, independentemente da existência de culpa, pela reparação dos danos causados aos consumidores por defeitos decorrentes de projeto, fabricação, construção, montagem, fórmulas, manipulação, apresentação ou acondicionamento de seus produtos, bem como por informações insuficientes ou inadequadas sobre sua utilização e riscos. § 1º - O produto é defeituoso quando não oferece a segurança que dele legitimamente se espera,[...]”. O Termo de Garantia Contratual, complementar à garantia legal, é um termo feito por escrito e que precede e acompanha o Manual da Edificação. O termo de garantia ou equivalente deve esclarecer, de maneira adequada, em que consiste a mesma garantia, bem como a forma, o prazo e o lugar em que pode ser exercitada e os ônus a cargo do consumidor, devendo ser-lhe entregue, devidamente preenchido pelo construtor, no ato da entrega e recebimento do imóvel. As garantias oferecidas pelo Construtor devem especificar, além de outras, as exigências quanto aos prazos de atendimento aos vícios da construção, tal como mencionado no CDC: “Art. 18 - Os fornecedores de produtos de consumo duráveis ou não duráveis respondem solidariamente pelos vícios de qualidade ou quantidade que os tornem impróprios ou inadequados ao consumo a que se destinam ou lhes diminuam o valor, assim como por aqueles decorrentes da disparidade, com as indicações constantes do recipiente, da embalagem, rotulagem ou mensagem Elaborado por: Analisado por: Professor : Marcelo Gandra Falcone Alessandra Aparecida Vieira Marcelo Gandra Falcone QUANDO IMPRESSO CONSIDERAR PIRATARIA - CÓPIA NÃO AUTORIZADA
  • 31.
    UNINOVE Rev. B Engenharia deAvaliações e Perícias Manutenção Predial e Avaliação de Máquinas e Equipamentos 16/07/2011 Folha 31/424 publicitária, respeitadas as variações decorrentes de sua natureza, podendo o consumidor exigir a substituição das partes viciadas”. Vícios da construção (não confundir com defeito, citado anteriormente) podem ser de duas naturezas: vícios aparentes ou de fácil constatação (ver Figura 10), e vícios ocultos (ver Figura 11). Os vícios ocultos, qualificados como vícios redibitórios – da mesma forma que os vícios aparentes ou de fácil constatação têm prazo de prescrição semestral, fixado pelo Código Civil e, desta maneira, o momento para que o vício fique evidenciado não deverá ultrapassar este tempo: Capítulo IV - DOS PRAZOS DA PRESCRIÇÃO Art. 178. Prescreve-se: [...] § 5°. Em 6 (seis) meses: [...] IV - a ação para haver o abatimento do preço da coisa imóvel, recebida com vício redibitório, ... O Termo de Garantia Contratual, complementar à garantia legal, poderá conter a descrição das garantias adicionais dadas pelos fornecedores de componentes, instalações e equipamentos da edificação, identificando-se prazos de validade e responsabilidades dos usuários da edificação para a validade destas garantias. Na identificação dos fornecedores de componentes, instalações e equipamentos, incluindo nomes, registros profissional e/ou empresarial, endereço e telefone, far-se-á obrigatoriamente a ressalva de que o contato direto com estes fornecedores é uma faculdade e não uma responsabilidade dos usuários da edificação. Figura 9 – Defeitos endógenos na construção - Aristides Athayde Cordeiro Termo De Garantia E Manual Da Edificação Curitiba, Sinduscon Pr Janeiro De 2001 fonte www.sindusconpr.com.br/.../20090401150424Manual_proprietario.doc Elaborado por: Analisado por: Professor : Marcelo Gandra Falcone Alessandra Aparecida Vieira Marcelo Gandra Falcone QUANDO IMPRESSO CONSIDERAR PIRATARIA - CÓPIA NÃO AUTORIZADA
  • 32.
    UNINOVE Rev. B Engenharia deAvaliações e Perícias Manutenção Predial e Avaliação de Máquinas e Equipamentos 16/07/2011 Folha 32/424 Figura 10 – Vícios aparentes ou de fácil constatação - ARISTIDES ATHAYDE CORDEIRO TERMO DE GARANTIA E MANUAL DA EDIFICAÇÃO CURITIBA, SINDUSCON PR JANEIRO DE 2001 fonte www.sindusconpr.com.br/.../20090401150424Manual_proprietario.doc Figura 11– Vícios rebiditórios ou ocultos - ARISTIDES ATHAYDE CORDEIRO TERMO DE GARANTIA E MANUAL DA EDIFICAÇÃO CURITIBA, SINDUSCON PR JANEIRO DE 2001 fonte www.sindusconpr.com.br/.../20090401150424Manual_proprietario.doc Elaborado por: Analisado por: Professor : Marcelo Gandra Falcone Alessandra Aparecida Vieira Marcelo Gandra Falcone QUANDO IMPRESSO CONSIDERAR PIRATARIA - CÓPIA NÃO AUTORIZADA
  • 33.
    UNINOVE Rev. B Engenharia deAvaliações e Perícias Manutenção Predial e Avaliação de Máquinas e Equipamentos 16/07/2011 Folha 33/424 As anomalias de origem exógena devem ser reparadas pelos causadores desses danos, consoante está preconizado pelo art.186 do Código Civil, ou seja, aquele que, por ação ou omissão voluntária, negligência ou imprudência, violar direito e causar dano a outrem, ainda que exclusivamente moral, comete ato ilícito. Em geral, a responsabilidade pela periclitação e acidentes construtivos, decorrentes de fatores funcionais, com destaque para os descuidos com a Manutenção das Edificações, é atribuída ao proprietário ou síndico, consoante estabelecido em lei. O item V do artigo 1.348 do Código Civil consigna que compete ao síndico diligenciar a conservação e a guarda das partes comuns e zelar pela prestação dos serviços que interessem aos possuidores, ou seja, é sua responsabilidade conservar o condomínio em boas condições de segurança, proteção, salubridade e conforto, cuja principal diligência para tanto é a Manutenção. O item VIII do art.39 do Código do Consumidor, por seu lado, veda os serviços em desacordo com as normas da ABNT, lembrando-se que o cumprimento da norma técnica NBR 5674/99 da ABNT, quanto à Manutenção de Edificações, é outra medida a ser diligenciada pelo síndico. As anomalias de de origem Natural decorrentes de fenômenos da natureza (previsíveis, imprevisíveis) e Funcional originarias do uso e degradação ao longo do tempo são de responsabilidade do sindico e em caso de edificações de menor porte são de responsabilidade do proprietário e do responsável pelo uso Destaque-se portanto que os síndicos e proprietários de imóveis e usuários , são os agentes mais vulneráveis, em virtude da negligência com a Manutenção Predial, a colocar pessoas em condições de risco ou mesmo causando vítimas pelos acidentes prediais. Quanto à responsabilidade criminal, no capítulo das Lesões Corporais, o art 129 do Código Penal é muito claro quanto a se ofender a integridade corporal ou a saúde de outrem, com pena variando de três meses a doze anos de detenção; no capítulo da Periclitação da Vida e da Saúde, o art.132 dispõe que expor a vida ou a saúde de outrem a perigo direto e iminente pode gerar pena de três meses a um ano de detenção. Tais exigências legais não deixam qualquer dúvida quanto aos ônus, responsabilidades e sansões passíveis de serem atribuídas aos responsáveis pelas anomalias construtivas. O(s) profissional é (são) responsável (ais) única e exclusivamente pelo escopo e pelo nível de inspeção contratada.  Exime-se de qualquer responsabilidade técnica a empresa ou profissional, quando as observações e orientações existentes no laudo de Inspeção Predial não forem implementadas pelo proprietário ou Elaborado por: Analisado por: Professor : Marcelo Gandra Falcone Alessandra Aparecida Vieira Marcelo Gandra Falcone QUANDO IMPRESSO CONSIDERAR PIRATARIA - CÓPIA NÃO AUTORIZADA
  • 34.
    UNINOVE Rev. B Engenharia deAvaliações e Perícias Manutenção Predial e Avaliação de Máquinas e Equipamentos 16/07/2011 Folha 34/424 responsável legal da edificação,bem como por qualquer anomalia e falha decorrente de deficiências de: projeto, execução, especificação de materiais, e/ou deficiência de manutenção, bem como qualquer outra alheia ao trabalho de inspeção procedido.  Exime-se de qualquer responsabilidade técnica a empresa ou profissional, sobre a análise de elementos, componentes, subsistemas e locais onde não foi possível executar a Inspeção Predial. Deve-se explicitar a redação específica desses impedimentos no laudo. Quanto a documentação recomenda-se analisar, quando disponíveis e existentes, os seguintes documentos, legais, administrativos e técnicos da edificação. TRABALHISTA  Livro ou cartão de ponto  Horário de trabalho  Carimbo do C.N.P.J  Matrícula no INSS  Livro de Registro de Empregados  Livro de Inspeção do Trabalho  Contratos de Experiência  Folha de Pagamento  Pasta com todas as rescisões de contrato de trabalho  Cadastro do empregador para o Vale Transporte  Declaração e Termo de Responsabilidade - vale transporte  Termo de responsabilidade para concessão do Salário-Família  Declaração de dependentes para fins de desconto do Imposto de Renda  Guias - contribuição sindical ; INSS ; FGTS ; PIS ; IR  Certidões negativas de Débito (CND) do INSS e FGTS a cada três  meses, se o responsável pelo pagamento é a administradora ou o contador  RAIS (Relação Anual de Informação Social)  DIRF (Declaração do Imposto de Renda na Fonte)  Comprovante de rendimentos pagos e de retenção de Imposto de Renda na Fonte. ADMINISTRATIVA  Instituição, Especificação e Convenção de Condomínio;  Regimento Interno do Condomínio;  Alvará de Construção;  Auto de Conclusão;  IPTU  Programa de Prevenção de Riscos Ambientais (PPRA);  Alvará do Corpo de Bombeiros Elaborado por: Analisado por: Professor : Marcelo Gandra Falcone Alessandra Aparecida Vieira Marcelo Gandra Falcone QUANDO IMPRESSO CONSIDERAR PIRATARIA - CÓPIA NÃO AUTORIZADA
  • 35.
    UNINOVE Engenharia de Avaliaçõese Perícias Manutenção Predial e Avaliação de Máquinas e Equipamentos                Rev. B 16/07/2011 Folha 35/424 Ata de instalação do condomínio; A lista de documentos mencionada refere-se ao Município de São Paulo - SP. Para outras localidades, o Inspetor predial devera adequar e complementar a referida lista, consoantes as exigência de posturas Municipais e legais (lembra sempre do Art 5º da Constituição). Autos de Vistoria de Segurança (AVS) Certificado de Manutenção do Sistema de Segurança; Certificado de treinamento de brigada de incêndio; Licença de funcionamento da prefeitura Licença de funcionamento do órgão ambiental estadual Cadastro no sistema de limpeza urbana Comprovante da destinação de resíduos sólidos, etc. Relatório de danos ambientais, quando pertinente Licença da vigilância sanitária, quando pertinente Contas de consumo de energia elétrica, água e gás. PCMSO – Programa de Controle Médico de Saúde Ocupacional. Alvará de funcionamento; Certificado de Acessibilidade TÉCNICA  Memorial descritivo dos sistemas construtivos;  Quadros de área;  Projetos dos sistemas construtivos (listar o que está hoje na Norma)  Projeto aprovado;  Projeto modificativo;  Projeto executivo;  Projeto de sondagem;  Projeto de fundações, contenções, cortinas e arrimos;  Projeto de estruturas;  Projeto de formas;  Projeto de armação;  Projeto de Instalações Prediais:  Instalações Hidráulico-sanitárias, e de água pluviais;  Instalações de gás;  Instalações elétricas, de telefonia e de Pára-raios (SPDA);  Instalações de ar condicionado;  Projeto de Impermeabilização;  Projeto de Revestimentos;  Projeto de Pintura;  Projeto de acessibilidade MANUTENÇÃO E OPERAÇÃO  Manual de Uso, Operação e Manutenção (Manual do Proprietário e do Síndico); Elaborado por: Analisado por: Professor : Marcelo Gandra Falcone Alessandra Aparecida Vieira Marcelo Gandra Falcone QUANDO IMPRESSO CONSIDERAR PIRATARIA - CÓPIA NÃO AUTORIZADA
  • 36.
    UNINOVE Engenharia de Avaliaçõese Perícias Manutenção Predial e Avaliação de Máquinas e Equipamentos                  Rev. B 16/07/2011 Folha 36/424 Plano de Manutenção e Operação e Controle (PMOC) Selos dos Extintores Relatório de Inspeção Anual de Elevadores (RIA); Atestado do Sistema de Proteção a Descarga Atmosférica - SPDA; Certificado de limpeza e desinfecção dos reservatórios; Relatório das análises físico-químicas de potabilidade de água dos reservatórios e rede; Certificado de ensaios de pressurização em mangueiras; Laudos de Inspeção Predial anteriores; Certificado de ensaios de pressurização em cilindro de extintores. Relatório do acompanhamento de rotina da Manutenção Geral; Relatórios dos Acompanhamentos das Manutenções dos Sistemas específicos: ar condicionado, motores, antenas, bombas, CFTV, Equipamentos eletromecânicos e demais componentes. Relatórios de ensaios da água gelada e de condensação de sistemas de ar condicionado central Certificado de teste de estanqueidade do sistema de gás. Relatórios de ensaios preditivos, tais como: termografia, vibrações mecânicas, etc. Relatórios dos Acompanhamentos das Manutenções dos Sistemas Cadastro de equipamentos e máquinas A lista acima é uma sugestão e deve ser adequada pelo inspetor predial de acordo com a localidade da edificação inspecionada, havendo outros documentos específicos para cada municipalidade, o que deve ser pesquisado e providenciado pelo inspetor, quando possível. Os documentos da lista acima devem ser colocados no Laudo como anexos, pois eles são utilizados como parte das evidências objetivas colhidas na diligencia e tem valor de subsídio das informações e conclusões (embasamento). Estes documentos listados assim como as normas utilizadas como referencia e as fotografias, formam um método racional para evidenciar as conclusões de forma confiável e reproduzível em um processo sistemático de perícia. Evidência de vistoria tem que ser verificável e recuperável. Elas são baseadas em amostras das informações disponíveis, uma vez que uma vistoria é realizada durante um período finito de tempo e com recursos finitos. Resumindo, o uso apropriado de evidencias está intimamente relacionado com a confiança que pode ser colocada nas conclusões e nos laudos. Elaborado por: Analisado por: Professor : Marcelo Gandra Falcone Alessandra Aparecida Vieira Marcelo Gandra Falcone QUANDO IMPRESSO CONSIDERAR PIRATARIA - CÓPIA NÃO AUTORIZADA
  • 37.
    UNINOVE Rev. B Engenharia deAvaliações e Perícias Manutenção Predial e Avaliação de Máquinas e Equipamentos 16/07/2011 Folha 37/424 Figura 12 - Responsabilidades; in “INSPEÇÃO PREDIAL: FERRAMENTA NA GESTÃO DE ATIVOS” - autor: Flávia Zoéga Andreatta Pujadas. Apresentação da ARCHEO Eng. Ass. – novembro de 2007 Seminário de Inspeção e Manutenção Predial CREA AM. Fonte: http://www.crea-am.org.br/src/site/ Figura 13– Exemplos de falência estrutural em incêndios – Cartilha CONTRU 2, Prefeitura da Cidade de São Paulo, Secretaria da Habitação Dez 2008 Elaborado por: Analisado por: Professor : Marcelo Gandra Falcone Alessandra Aparecida Vieira Marcelo Gandra Falcone QUANDO IMPRESSO CONSIDERAR PIRATARIA - CÓPIA NÃO AUTORIZADA
  • 38.
    UNINOVE Rev. B Engenharia deAvaliações e Perícias Manutenção Predial e Avaliação de Máquinas e Equipamentos 16/07/2011 Folha 38/424 6) Valorização patrimonial desencadeada por ações de manutenção predial A Manutenção Predial compreende um conjunto de serviços para a conservação ou recuperação da capacidade funcional da edificação, a fim de atender as necessidades dos usuários. Possui por finalidade primeira a minimização dos desgastes nos diversos sistemas que compõem o edifício, bem como o atendimento aos níveis de desempenho e exigências dos usuários, permitindo que as vidas úteis desses sistemas se aproximem dos prazos para os quais foram projetados. Para estabelecer o Plano de Manutenção Predial, que por definição é um conjunto de tarefas planejadas e programadas segundo uma Estratégia de Gestão, os Gerentes Condominiais não poderão se abster da constatação das reais condições técnicas do empreendimento.Neste aspecto a INSPEÇÃO PREDIAL auxilia todo o processo e, inclusive, já está prevista em norma técnica de Manutenção Predial (NBR 5674 da ABNT). INSPEÇÃO PREDIAL é, de forma simples, a verificação da edificação, retratando o panorama geral em um determinado instante, através do levantamento e indicação das características reais do edifício. O Relatório de Inspeção Predial relaciona os problemas de ordem técnica funcional e de manutenção encontrados nos sistemas que compõe o empreendimento, documentando através de registro fotográfico e estabelecendo prioridades de intervenção sob a ótica da segurança do usuário. Informa, também, as recomendações técnicas para cada questão abordada. Com estas informações os Gerentes Condominiais poderão definir, corrigir ou reorientar o Plano de Manutenção do Edifício permitindo a programação de despesas e custos intrínsecos à manutenção. Além disso, estabelecerão parâmetros para a determinação de outros dois aspectos importantes na gestão condominial: A MANUTENÇÃO DO VALOR PATRIMONIAL E AUMENTO DO VALOR PATRIMONIAL. A MANUTENÇÃO DO VALOR PATRIMONIAL é tarefa da manutenção predial por excelência, visto que está diretamente relacionada com a funcionalidade dos sistemas, sua conservação e minimização de gastos. O AUMENTO DE VALOR PATRIMONIAL é uma etapa na vida econômica de um edifício que deve estar prevista nos planos de Gestão Condominial como estratégia Competitiva de Administração. Para haver Aumento de Valor Patrimonial, analisam-se as alterações e modificações necessárias dos sistemas de funcionamento, através da adequação e atualização frente às novas tendências mercadológicas. Nesse Elaborado por: Analisado por: Professor : Marcelo Gandra Falcone Alessandra Aparecida Vieira Marcelo Gandra Falcone QUANDO IMPRESSO CONSIDERAR PIRATARIA - CÓPIA NÃO AUTORIZADA
  • 39.
    UNINOVE Rev. B Engenharia deAvaliações e Perícias Manutenção Predial e Avaliação de Máquinas e Equipamentos 16/07/2011 Folha 39/424 caso são estabelecidos os critérios de quando e como realizar as alterações, programando o “Retrofit” e o “Up Grade” necessários para que seja garantida a manutenção da VANTAGEM COMPETITIVA no mercado imobiliário. Com base nestes conceitos, os custos de manutenção não podem ser confundidos como despesas. Os gastos com MANUTENÇÃO são INVESTIMENTOS ao patrimônio, já que permitem MANTER E AUMENTAR o VALOR PATRIMONIAL da empresa / CONDOMÍNIO. Figura 14 - Manutenção – Perda de Valor; in “PALESTRA DE INSPEÇÃO PREDIAL” - autor: Flávia Zoéga Andreatta Pujadas. Apresentação da ARCHEO Eng. Ass. - OUTUBRO/2008 no IBAPE, FORUM DE INSPEÇÃO DE ESTADIOS. Fonte http://www.ibape-sp.org.br/arquivos/ De acordo com este contexto, a INSPEÇÃO PREDIAL impulsiona toda a gama de atividades para a materialização do investimento no patrimônio, e se faz insubstituível como instrumento moderno na ADMINISTRAÇÃO CONDOMINIAL, onde a regra é a administração por resultados com plena utilização dos recursos tecnológicos, humanos e materiais, a fim de solucionar questões relacionadas ao consumo e investimento de bens imóveis.”. A Inspeção Predial é o fundamento ou a base de todo o processo da manutenção de valores, tal qual a relação abaixo estabelecida, segundo o fluxo de informações proposto:  Estudo do mercado – panorama geral  Realização da Inspeção Predial  Análise das anomalias – prioridades de serviços – recomendações técnicas  Plano de manutenção e reformas, considerando o mercado Elaborado por: Analisado por: Professor : Marcelo Gandra Falcone Alessandra Aparecida Vieira Marcelo Gandra Falcone QUANDO IMPRESSO CONSIDERAR PIRATARIA - CÓPIA NÃO AUTORIZADA
  • 40.
    UNINOVE Engenharia de Avaliaçõese Perícias Manutenção Predial e Avaliação de Máquinas e Equipamentos     Rev. B 16/07/2011 Folha 40/424 Levantamento de valores a serem investidos Estabelecimento de cronograma de intervenções Análises de viabilidade de investimentos Verificação da consolidação da valorização patrimonial Figura 15 - ; in “PALESTRA DE INSPEÇÃO PREDIAL” - autor: Flávia Zoéga Andreatta Pujadas. Apresentação da ARCHEO Eng. Ass. - Novembro/200p no IBAPE, Curso de Inspeção Predial em Estádios de Futebol. Fonte http://www.ibape-sp.org.br/arquivos/ É importante destacar que a manutenção recupera e conserva a capacidade funcional de sistemas e elementos construtivos, sendo assim ela não tem como objetivo reformar ou alterar características de projeto. A manutenção recupera através de atividades corretivas, sendo estas preferencialmente planejadas, envolvendo aspectos de durabilidade, desempenho, vida útil. As atividades de manutenção a serem realizadas dentro de um plano de gestão da manutenção – estratégia de ação, essas podem ser classificadas em preditivas, preventivas, corretivas e detectivas. Manutenção Preditiva: é uma atividade que visa estudos sistemas e equipamentos e analisar seu Elaborado por: Analisado por: Professor : Marcelo Gandra Falcone Alessandra Aparecida Vieira Marcelo Gandra Falcone QUANDO IMPRESSO CONSIDERAR PIRATARIA - CÓPIA NÃO AUTORIZADA
  • 41.
    UNINOVE Rev. B Engenharia deAvaliações e Perícias Manutenção Predial e Avaliação de Máquinas e Equipamentos 16/07/2011 Folha 41/424 comportamento, a fim de predizer e apontar anomalias, instruindo aspectos da manutenção preventiva. Manutenção Preventiva: Age antecipadamente para que não haja a reparação, são atividades programadas em datas pré-estabelecidas obedecendo, portanto, critérios técnicos e administrativos.É o conjunto de atividades que visam evitar possíveis problemas dos componentes das máquinas e equipamentos, comprometendo a sua performance e desempenho Manutenção Corretiva: Visa à reparação, caracterizada por serviços planejados ou não, objetivando corrigir defeitos. Manutenção Detectiva: Visa apurar a causa de problemas e sua análise, a fim de auxiliar nos planos de manutenção bem como nas atividades de manutenção preventiva e corretiva.É a engenharia de manutenção ou a manutenção proativa. Observa-se, segundo a Lei de Sitter ou Lei dos Cinco, a evolução progressiva de custos de manutenções, aplicada às suas atividades, considerando os custos relativos ao tipo de intervenção conforme figura abaixo: Figura 16 - Custos de Manutenção; in “ASPECTOS PRÁTICOS DA INSPEÇÃO PREDIAL E MANUTENÇÃO” - autor: Flávia Zoéga Andreatta Pujadas. Apresentação da ARCHEO Eng. Ass. - Julho/2005 no Primeiro Seminário de Inspeção e Manutenção Predial da P&M. Fonte http://www.ibape-sp.org.br/arquivos/aspectos.pdf Segundo SITTER, colaborador do CEB - COMITÊ EURO-INTERNACIONAL DU BÉTON, apud ELENE, 1992, pg.24. e formulador dessa lei de custos, adiar uma intervenção significa aumentar os custos diretos em uma razão de progressão geométrica de 5 (cinco).Sendo, conforme ilustração acima. Se em t2, o custo de intervenção é igual a 5, em t3 será 25, em t4 será 125 e assim por diante na razão de 5. Elaborado por: Analisado por: Professor : Marcelo Gandra Falcone Alessandra Aparecida Vieira Marcelo Gandra Falcone QUANDO IMPRESSO CONSIDERAR PIRATARIA - CÓPIA NÃO AUTORIZADA
  • 42.
    UNINOVE Rev. B Engenharia deAvaliações e Perícias Manutenção Predial e Avaliação de Máquinas e Equipamentos 16/07/2011 Folha 42/424 7) COMPONENTES DOS LAUDOS E INFORMAÇÕES IMPORTANTES RELATIVAS À MANUTENÇÃO E INSPEÇÃO PREDIAL. Consoante o desenvolvimento dos itens abordados nos tópicos anteriores a inspeção predial deverá ser planejada conforme o tipo da edificação, consideradas suas características construtivas, qualidade da documentação entregue ao inspetor e nível de inspeção a ser realizado. O planejamento da vistoria deverá ter início com uma entrevista com o responsável da edificação (síndico, administrador ou gestor), com abordagem dos aspectos cotidianos do uso e da manutenção do imóvel. A inspeção predial poderá ser realizada em toda a edificação ou em partes desta, indicada pelo interessado, ou, ainda, de acordo com a abrangência do trabalho. A Inspeção Predial e seu relatório devem reportar claramente as falhas e anomalias. Durante a confecção do laudo é de grande responsabilidade atentar para os tipos e origens dos problemas constatados, a fim de proceder a orientações pertinentes à Manutenção ou ao Plano de Reparos. Segundo diversas estatísticas sobre a incidência dos problemas na construção civil, a manifestação patológica se dá nas etapas de uso e operação das edificações, mesmo quando estejam relacionadas às etapas de projeto e execução. Logo, conforme definido acima, anomalias possuem origem nas etapas de projeto, execução ou especificação de materiais, já as falhas relacionam-se a deficiências na etapa de uso, operação e /ou manutenção. Quando as anomalias são funcionais, ainda podem existir origens em processos de obsolescência, perda funcional, degradação, etc. Portanto, consoante a visão sistêmica tri-dimensional (ver figura 5, pág ), a questão da viabilidade técnica dos serviços de manutenção está dependente de um correto diagnóstico dos problemas existentes nas edificações. É imprescindível, que haja a avaliação periódica das instalações, conforme os critérios acima expostos, para o sucesso de um plano de Manutenção. Portanto, após a constatação de anomalias e falhas, bem como da análise quanto as suas causalidades e origens, recomenda-se verificar se as orientações técnicas a serem elaboradas nos Laudos de Inspeção Predial são pertinentes a atividades distintas de: Manutenção ou Reparação. Figura 17 - Visão tri-dimensional da Inspeção; in “INSPEÇÃO PREDIAL: FERRAMENTA NA GESTÃO DE ATIVOS” autor: Flávia Zoéga Andreatta Pujadas. Apresentação da ARCHEO Eng. Ass. – novembro de 2007 Fonte: http://www.crea-am.org.br/src/site/ Elaborado por: Analisado por: Professor : Marcelo Gandra Falcone Alessandra Aparecida Vieira Marcelo Gandra Falcone QUANDO IMPRESSO CONSIDERAR PIRATARIA - CÓPIA NÃO AUTORIZADA
  • 43.
    UNINOVE Rev. B Engenharia deAvaliações e Perícias Manutenção Predial e Avaliação de Máquinas e Equipamentos 16/07/2011 Folha 43/424 7.1 Elaboração do Laudo de Inspeção Predial 7.1.1 Dados que devem constar do Laudo:  INTRODUÇÃO o Identificação do solicitante e do imóvel; o Classificação do objeto da inspeção; o Localização; o Data da Diligência (Vistoria – dias – horas, ou seja, determina a duração);  DESENVOLVIMENTO o Caracterização das condições verificada na vistoria; o Descrição Técnica do objeto: o Padrão Construtivo o Utilização e Ocupação o Idade da edificação o Nível utilizado; o Documentação analisada. o Critério e Metodologia adotada o Relação dos elementos construtivos e equipamentos vistoriados com a descrição das respectivas anomalias, classificadas por grau de risco e urgência (Classificação e análise das anomalias e falhas quanto ao grau de risco e Indicação da ordem de prioridade); o Avaliação do estado de conservação geral do imóvel;  CONCLUSÃO o Conclusões e recomendações o Relação de documentos analisados; o Indicação das recomendações técnicas e/ou das medidas preventivas e corretivas necessárias; o Data do laudo; o Assinatura do profissional responsável técnico, acompanhado do nº do registro no CREA;  ANEXOS o Fotos e suas legendas; o Cópia da Anotação de Responsabilidade Técnica (ART); o Plantas ou outros documentos. Elaborado por: Analisado por: Professor : Marcelo Gandra Falcone Alessandra Aparecida Vieira Marcelo Gandra Falcone QUANDO IMPRESSO CONSIDERAR PIRATARIA - CÓPIA NÃO AUTORIZADA
  • 44.
    UNINOVE Rev. B Engenharia deAvaliações e Perícias Manutenção Predial e Avaliação de Máquinas e Equipamentos 16/07/2011 Folha 44/424 7.1.2 Recomendações segundo a norma de procedimentos para elaboração de laudos de inspeção predial do CREA BA:  A Vistoria Técnica deverá contemplar um diagnóstico geral do estado de conservação e/ou grau de urgência da correção das anomalias identificadas nas edificações/equipamentos públicos e privados; os pontos sujeitos a recuperação, reparos, restauro, reforma, manutenção ou substituição; as medidas saneadoras a serem utilizadas e suas respectivas metodologias; os prazos máximos para conclusão das medidas saneadoras.  Os Relatórios e Laudos de Vistoria Técnica deverão ser elaborados segundo as disposições da NBR 13.752/96 da ABNT e serem acompanhados da respectiva Anotação de Responsabilidade Técnica – ART.  A Inspeção Predial poderá estar classificada de acordo com o grau de complexidade se enquadrando nas seguintes situações: - Nível 1: Imóveis térreos, sobrados e edifícios sem elevador, etc: Vistoria para a identificação das anomalias aparentes, elaboradas por profissional habilitado; contando com orientação técnica pertinente; – Nível 2: Edifícios Multifamiliares, Edifícios de uso misto – comerciais e de serviços, Centros Comerciais, Edifícios Industriais, etc: Vistoria para a identificação de anomalias aparentes identificadas com ou sem o auxilio de equipamentos, contendo indicação de orientações técnicas pertinentes; – Nível 3: Imóveis com suspeitas de vícios ocultos significativos: Vistoria para a identificação de anomalias aparentes, e das ocultas constatáveis com o auxilio de equipamentos , incluindo testes e ensaios locais e/ou laboratoriais específicos, elaborada por profissionais de diversas especialidades, contendo indicação de orientações técnicas pertinentes.  Análise dos procedimentos de manutenção e conservação: Deverão ser verificados quais os procedimentos de manutenção e conservação que estão sendo empregados no imóvel vistoriado e qual a periodicidade destes procedimentos. Elaborado por: Analisado por: Professor : Marcelo Gandra Falcone Alessandra Aparecida Vieira Marcelo Gandra Falcone QUANDO IMPRESSO CONSIDERAR PIRATARIA - CÓPIA NÃO AUTORIZADA
  • 45.
    UNINOVE Rev. B Engenharia deAvaliações e Perícias Manutenção Predial e Avaliação de Máquinas e Equipamentos 16/07/2011 Folha 45/424  A complexidade e grau de deterioração do imóvel determinará o Estado de Conservação e Grau de Urgência da solução das anomalias do imóvel.  Fotografias: Deverão ser fotografados todas as irregularidades detectadas perfeitamente identificadas dentro do ambiente vistoriado e também fotos em detalhe para melhor ilustrar o estado de conservação e grau de urgência destas. Além dos ambientes recomenda-se fotografar as fachadas, a vista frontal e as vias principais de acesso. Figura 18 – Vistoria Contru 2 ao Teatro Municipal de São Paulo em 24 de setembro de 2008 Elaborado por: Analisado por: Professor : Marcelo Gandra Falcone Alessandra Aparecida Vieira Marcelo Gandra Falcone QUANDO IMPRESSO CONSIDERAR PIRATARIA - CÓPIA NÃO AUTORIZADA
  • 46.
    UNINOVE Engenharia de Avaliaçõese Perícias Manutenção Predial e Avaliação de Máquinas e Equipamentos 8) TÓPICOS INTEGRADA. PARA Rev. B 16/07/2011 CHECK-LIST DA Folha 46/424 MANUTENÇÃO PREDIAL 8.1 Exemplos de Lista de Verificação de inspeção de um prédio Residencial. 8.1.1 Lista sugestão do site Sindico Net para zeladores e porteiros: Fonte: http://www.sindiconet.com.br/47/informese/guias-sindiconet/check-up-predial/check-up-predial Elaborado por: Analisado por: Professor : Marcelo Gandra Falcone Alessandra Aparecida Vieira Marcelo Gandra Falcone QUANDO IMPRESSO CONSIDERAR PIRATARIA - CÓPIA NÃO AUTORIZADA
  • 47.
    UNINOVE Rev. B Engenharia deAvaliações e Perícias Manutenção Predial e Avaliação de Máquinas e Equipamentos 16/07/2011 Folha 47/424 8.1.2) Exercício - Sugestão de Material para fazer a vistoria: 1) ELEMENTOS QUE DEVEM CONSTAR NO LAUDO: a) 1. 2. b) 3. 4. 5. 6. 7. 8. Da capa Identificação do solicitante: Identificação do autor do laudo e do tipo de contratação Do conteúdo Sumario Classificação do objeto da inspeção:  Localização;  Data da Diligência;  Descrição Técnica do objeto:  Tipologia e Padrão Construtivo:  Utilização e Ocupação:  Idade da edificação Nível utilizado na inspeção; Documentação analisada. Critério e Metodologia adotada; c) 9. Das informações : Lista de verificação dos elementos construtivos e equipamentos vistoriados com a descrição e localização das respectivas anomalias e falhas, 10. Classificação e análise das anomalias e falhas quanto ao grau de risco (Crticidade) e Indicação da ordem de prioridade. 11. Sugestões de tratamento da anomalia e ordem de grandeza dos custos em CUB´s d) 12. 13. 14. 15. 16. 17. Das Conclusões Classificação do estado de manutenção geral e condições de uso do imóvel; Lista de recomendações prioritárias de Manutenção e Obras; Lista de recomendações gerais e sustentabilidade; Recomendação do prazo para nova Inspeção Predial; Data do laudo; Assinatura do(s) profissional (ais) responsável (eis), acompanhado do Nº. do CREA e) 18. 19. 20. 21. 22. Dos anexos Relatório Fotográfico; Check-List (opcional); Peças gráficas; Documentos; Anotação de Responsabilidade Técnica (ART); 2) CLASSIFICAÇÕES DAS INSPEÇÕES PREDIAIS QUANTO AO NÍVEL DA INSPEÇÃO NÍVEL 1 : Análises técnicas elaborada por um único profissional habilitado, voltadas a edificações de pequeno porte, com escadarias ou apenas um elevador. NÍVEL 2: Análises técnicas procedidas por equipe de no mínimo dois profissionais de diversas especialidades, eventualmente com o auxilio de equipamentos e/ou aparelhos, consoante à complexidade dos sistemas construtivos existentes. A Inspeção Predial nesse nível é elaborada por profissionais habilitados em uma ou mais especialidades. NÍVEL 3: Equivalente aos parâmetros definidos para a inspeção de NÍVEL 2, acrescida de consultoria com as prescrições para a reparação das anomalias e falhas constatadas, ou de consultoria para a melhoria e ajuste dos procedimentos existentes no plano de manutenção. Elaborado por: Analisado por: Professor : Marcelo Gandra Falcone Alessandra Aparecida Vieira Marcelo Gandra Falcone QUANDO IMPRESSO CONSIDERAR PIRATARIA - CÓPIA NÃO AUTORIZADA
  • 48.
    UNINOVE Rev. B Engenharia deAvaliações e Perícias Manutenção Predial e Avaliação de Máquinas e Equipamentos 16/07/2011 Folha 48/424 3) CLASSIFICAÇÃO DOS GRAUS DE RISCO - Criticidade Crítico: impacto irrecuperável recomendando intervenção imediata. Os impactos irrecuperáveis são aqueles que provocam danos contra a saúde e segurança das pessoas e meio ambiente, perda excessiva de desempenho causando possíveis paralisações, aumento de custos, comprometimento sensível de vida útil e desvalorização acentuada. Regular: impacto parcialmente recuperável recomendando programação de curto prazo. Os impactos parcialmente recuperáveis são aqueles que provocam de perda de funcionalidade sem prejuízo à operação direta de sistemas, perda pontual de desempenho (possibilidade de recuperação), deterioração precoce e pequena desvalorização. Mínimo: impacto recuperável recomendando programação de médio prazo. Os impactos recuperáveis são aqueles causados por pequenos prejuízos à estética ou atividades programáveis planejadas, sem incidência ou sem a probabilidade de ocorrência dos riscos acima expostos, e sem comprometimento do valor imobiliário. 4) DEFINIÇÃO DO ESCOPO (ABRANGÊNCIA) Fazer uma relação dos sistemas avaliados ou dos locais avaliados SISTEMA AVALIADO SIM 1 – Estrutura; 2 – Alvenaria; 3 – Revestimentos; 4 – Impermeabilizações; 5 – Esquadrias; 6 – Cobertura; 7 – Paisagismo; 8 – Instalações: 8.1 – Elétricas: 8.2 – Hidráulicas: 8.3 – Gás: 8.4 – Sistema Proteção contra descargas atmosféricas (SPDA); 8.5 – Telefonia; 8.6 – Automação; 8.7 – Proteção contra incêndio; 8.8 – Ar condicionado; 8.9 – Segurança Patrimonial; 8.10 – Iluminação de emergência; 9 – Maquinas e Equipamentos: 9.1 – Elevadores; 9.2 – Caldeiras; 9.3 – Geradores; 9.4 – Pressurizadores; 9.5 – Bombas e filtros; Elaborado por: Analisado por: Professor : Marcelo Gandra Falcone Alessandra Aparecida Vieira Marcelo Gandra Falcone QUANDO IMPRESSO CONSIDERAR PIRATARIA - CÓPIA NÃO AUTORIZADA NÃO
  • 49.
    UNINOVE Rev. B Engenharia deAvaliações e Perícias Manutenção Predial e Avaliação de Máquinas e Equipamentos 16/07/2011 Folha 49/424 9.6 – Automação de Portões 10 – Diversos: 10.1 – Quadras Poliesportivas; 10.2 – Play Ground; 10.3 – Churrasqueiras; 10.4 – Saunas; 10.5 – Equipamentos de Ginástica; 10.6 – Sala de cinema; 10.7 – Heliponto; 10.8 – Adegas; 10.9 – Piscinas; 10.10 – Lixeiras; 11 – OUTROS 11.1 11.2 5) Modelo para um Laudo: Ao Ilmo Dr Zigfredo Relapso – Diretor Administrativo da Instituição Cai Cai 1) Objetivo: Inspeção para elaboração de Plano de Recuperação das condições de Uso das Instalações da Sala de Aula, sito à Rua das Gorgonzolas Mutantes, 124 esquina com Goteiras Psicodélicas, 133 2) Data e Local da Realização da Diligência: A diligencia ao local ocorreu em, São Paulo, de 22:00 horas. de 2010, das 9:00 as 3) Características Edilícias: O objeto da presente vistoria é uma sala de aula, no 9º andar de uma edificação. Foi verificado e consignado que o local esta dentro de uma edificação construída em um terreno de 4.300 m², com 18.900 m² de área construída total, com 02 subsolos, térreo e 9 pavimentos. Construção de padrão comercial simples em estrutura metálica com fechamento de alvenaria. As edificações estão sendo utilizadas como Instituição de Ensino. De acordo com a Ficha de Dados Cadastrais do IPTU, disponível no Site da Prefeitura, a idade da edificação tem 12 Anos de idade. A Inspeção realizada foi do tipo Nível 2, ou seja, realizada por equipe multidisciplinar, abrangendo diversos sistemas básicos da sala de aula. Elaborado por: Analisado por: Professor : Marcelo Gandra Falcone Alessandra Aparecida Vieira Marcelo Gandra Falcone QUANDO IMPRESSO CONSIDERAR PIRATARIA - CÓPIA NÃO AUTORIZADA
  • 50.
    UNINOVE Rev. B Engenharia deAvaliações e Perícias Manutenção Predial e Avaliação de Máquinas e Equipamentos 16/07/2011 Folha 50/424 Durante as vistorias foram apresentados e analisados os seguintes documentos técnicos e administrativos: Cartão do CNPJ, Manual dos Elevadores, RIA dos Elevadores, ART da conservadora dos Elevadores. 4) Critérios e Metodologia adotada; O critério utilizado para elaboração deste laudos de inspeção predial baseia-se na análise do risco oferecido aos usuários, ao meio ambiente e ao patrimônio, diante as condições técnicas, de uso, operação e manutenção da edificação, bem como da natureza da exposição ambiental, com base na ABNT NBR 5674/99: Manutenção de Edificações, da ABNT e na Norma de Inspeção Predial do IBAPE/1999. Das informações: Segue no Anexo a lista de verificação (Check List) dos elementos construtivos e equipamentos vistoriados com a descrição e localização das respectivas anomalias e falhas, Classificação e análise das anomalias e falhas quanto ao grau de risco e Indicação de Prioridade de Manutenção. 5) CONCLUSÂO: Classificação do estado de manutenção geral e condições de uso do imóvel; a) Lista com a descrição das anomalias encontradas conforme Lista de verificação “check-list” anexo, lista com a descrição das prováveis causas das anomalias encontradas e Lista das recomendações para sanar as anomalias. b) Classificação do estado de Manutenção Geral: [ [ [ [ [ ] Manutenção Ótima ] Manutenção Normal ] Manutenção Mínima ] Manutenção Deficiente ] Manutenção Inexistente c) Condições de Uso: [ ] USO REGULAR – Quando a edificação inspecionada encontra-se ocupada e utilizada de acordo com o uso previsto no projeto; [ ] USO IREGULAR – Quando a edificação inspecionada encontra-se ocupada e utilizada de forma irregular, com o uso divergente do previsto no projeto; d) Lista de recomendações prioritárias de Manutenção e Obras:   Manutenção: Recuperação: Elaborado por: Analisado por: Professor : Marcelo Gandra Falcone Alessandra Aparecida Vieira Marcelo Gandra Falcone QUANDO IMPRESSO CONSIDERAR PIRATARIA - CÓPIA NÃO AUTORIZADA
  • 51.
    UNINOVE Engenharia de Avaliaçõese Perícias Manutenção Predial e Avaliação de Máquinas e Equipamentos        Rev. B 16/07/2011 Folha 51/424 Preservação: Reabilitação: Reparo: Restauração: Reforço. Melhorias. Modernizações e) Lista de recomendações gerais e sustentabilidade:   Acessibilidade: Aproveitamento de águas pluviais: f)Anexos:    Documentos Check List (não Obrigatório) Relatório Fotográfico: f) Recomendação do prazo para nova Inspeção Predial Recomendação para a próxima inspeção:_________ANOS Tabela de referencia: LEI COMPLEMENTAR Nº 1.669 DE 05 DE MAIO DE 2004. Lei de Ribeirão Preto (SP) g) Identificação dos Peritos e Data de Elaboração do Laudo São Paulo, Nome do Profissional Assinatura Modalidade de de 2010 Numero do CREA Arquiteto Eng Eletricista h) ART preenchida e recolhida (paga): (ART): LINK: http://servonline.creasp.org.br/index.php Elaborado por: Analisado por: Professor : Marcelo Gandra Falcone Alessandra Aparecida Vieira Marcelo Gandra Falcone QUANDO IMPRESSO CONSIDERAR PIRATARIA - CÓPIA NÃO AUTORIZADA
  • 52.
    UNINOVE Rev. B Engenharia deAvaliações e Perícias Manutenção Predial e Avaliação de Máquinas e Equipamentos 16/07/2011 Folha 52/424 Anexo – DOCUMENTOS ANALISADOS documento analisado SIM 1 – Administrativa: 1.1 - Instituição, Especificação e Convenção de Condomínio; 1.2 – Regimento Interno do Condomínio; 1.3 – Manual do Proprietário; 1.4 – Alvará de Construção; 1.5 – Auto de Conclusão; 1.6 – Programa de Prevenção de Riscos Ambientais (PPRA); 1.7 – Auto de Verificação de Segurança (AVS) 1.8 – Auto de Vistoria do Corpo de Bombeiros (AVCB) 1.9 – Plano de Manutenção e Operação e Controle (PMOC) 1.10 – Selos dos Extintores 1.11 – Relatório de Inspeção Anual de Elevadores (RIA); 1.12 – Certificado de treinamento de brigada de incêndio; 1.13 – Atestado do Sistema de Proteção a Descarga Atmosférica - SPDA; 1.14 – Certificado de limpeza e análise química referente à limpeza dos Reservatórios; 1.15 – Ata de instalação do condomínio; 1.16 – Certificado de ensaios de pressurização em mangueiras; 1.17 – Laudos de Inspeção Predial; 1.18 – Alvará de funcionamento; 1.19 – Certificado de Manutenção do Sistema de Segurança; Elaborado por: Analisado por: Professor : Marcelo Gandra Falcone Alessandra Aparecida Vieira Marcelo Gandra Falcone QUANDO IMPRESSO CONSIDERAR PIRATARIA - CÓPIA NÃO AUTORIZADA NÃO
  • 53.
    UNINOVE Rev. B Engenharia deAvaliações e Perícias Manutenção Predial e Avaliação de Máquinas e Equipamentos 16/07/2011 Folha 53/424 1.20 – Ficam – Ficha de Inscrição no Cadastro de Manutenção de Sistema de Segurança; 2 – Técnica: 2.1 – Projeto aprovado; 2.2 – Projeto modificativo; 2.3 – Projeto executivo; 2.4 – Projeto de sondagem; 2.5 – Projeto de fundações, contenções, cortinas e arrimos; 2.6 – Projeto de estruturas; 2.7 – Projeto de formas; 2.8 – Projeto de armação; 2.9 – Projeto de Instalações Prediais: 2.9.1 – Instalações Hidráulico-sanitárias, e de água pluviais; 2.9.2 – Instalações de gás; 2.9.3 – Instalações elétricas, telefonia e Pára-raios (SPDA) 2.10 – Projeto de Impermeabilização; Anexo – Check list Edifício: Idade: sistema Descrição/ anomalia Fachada Fachada cerâmica 10x10 com junta de dilatação. Ocorreu desplacamento pela ruptura do Cimentcola End: Bairro : CEP: Numero de Andares: Nível da Inspeção: local desempenho Grau Grau de fotos Obs de Manut. risco 9 Insatisfatorio critico inexistente 1/2 ----andar Segurança Contra Incêndio Pintura Elétrica Elaborado por: Analisado por: Professor : Marcelo Gandra Falcone Alessandra Aparecida Vieira Marcelo Gandra Falcone QUANDO IMPRESSO CONSIDERAR PIRATARIA - CÓPIA NÃO AUTORIZADA
  • 54.
    UNINOVE Rev. B Engenharia deAvaliações e Perícias Manutenção Predial e Avaliação de Máquinas e Equipamentos 16/07/2011 Data da Vistoria: Anexo – Fotografias: FOTO Nº 1 Folha 54/424 Inspetor: FOTO Nº 2 Elaborado por: Analisado por: Professor : Marcelo Gandra Falcone Alessandra Aparecida Vieira Marcelo Gandra Falcone QUANDO IMPRESSO CONSIDERAR PIRATARIA - CÓPIA NÃO AUTORIZADA
  • 55.
    UNINOVE Rev. B Engenharia deAvaliações e Perícias Manutenção Predial e Avaliação de Máquinas e Equipamentos 16/07/2011 FOTO Nº 3 FOTO Nº 4 FOTO Nº 5 Folha 55/424 FOTO Nº 6 8.2 Check-list da manutenção do prédio De acordo com a norma brasileira NBR 5674, as inspeções prediais devem ser realizadas considerando as condições estabelecidas na Seção 8 - Coleta de informações. Dentre as considerações dessa seção é importante destacar a do item 8.4: “8.4 As inspeções devem ser orientadas por listas de conferência padronizadas (check-list), elaboradas considerando: • Roteiro lógico de inspeção das edificações • Os componentes e equipamentos mais importantes na edificação • As formas de manifestação esperadas da degradação da edificação • As solicitações e reclamações dos usuários”. Elaborado por: Analisado por: Professor : Marcelo Gandra Falcone Alessandra Aparecida Vieira Marcelo Gandra Falcone QUANDO IMPRESSO CONSIDERAR PIRATARIA - CÓPIA NÃO AUTORIZADA
  • 56.
    UNINOVE Rev. B Engenharia deAvaliações e Perícias Manutenção Predial e Avaliação de Máquinas e Equipamentos 16/07/2011 Folha 56/424 8.2.1 Lista sugestão do Site PROCOBRE para manutenção predial : Check-list da manutenção do prédio SISTEMA ELÉTRICO A cada 6 meses, checar se o sistema de aterramento sofreu corrosão e se a chegada do fio terra nos apartamentos está em boas condições. Verificar se há aquecimento nos fios ou mau contato, que causam fuga de energia. O quadro de força deve ser mantido lacrado. Uma empresa especializada deve verificar se o prédio está bem dimensionado ou se há sobrecarga elétrica. GÁS Mudança brusca no valor da conta é sinal de vazamento. A cada ano um técnico habilitado deve verificar todo o sistema. É importante conscientizar os moradores a verificar as contas e o aparecimento de cheiro estranho. ELEVADORES É obrigatório ter uma empresa responsável pelos elevadores, que costuma fazer um contrato mensal de manutenção. Verificar se a empresa é cadastrada no Contru. Ela deve emitir anualmente o RIA Relatório de Inspeção Anual dos elevadores, com Anotação de Responsabilidade Técnica do engenheiro responsável. BOMBAS O ideal é manter um contrato de manutenção com empresa idônea, que garanta pronto-atendimento. O zelador deve estar atento a qualquer ruído anormal no funcionamento da bomba, e solicitar visita da empresa antes da quebra. Check-list da manutenção do prédio GARAGENS Verificar se a pintura dos canos segue a NR-26, que diz respeito a sinalização de segurança. Não permitir a colocação de pneus junto às paredes e manter as demarcações das vagas pintadas com tinta adequada. Garantir iluminação adequada (sensores de presença ajudam na economia de energia). Fique atento ao aparecimento de trincas, infiltrações ou vazamentos. Para garantir que todos esses itens sejam atendidos, o ideal é uma Elaborado por: Analisado por: Professor : Marcelo Gandra Falcone Alessandra Aparecida Vieira Marcelo Gandra Falcone QUANDO IMPRESSO CONSIDERAR PIRATARIA - CÓPIA NÃO AUTORIZADA
  • 57.
    UNINOVE Rev. B Engenharia deAvaliações e Perícias Manutenção Predial e Avaliação de Máquinas e Equipamentos 16/07/2011 Folha 57/424 visita diária do zelador às garagens TOPO DO PRÉDIO Inclui pára-raios (verificar se está de acordo com a NBR 5419/2001), luz-piloto, telhas, calhas e ralos,lajes,guarda-corpo e escadas, casa das máquinas e barrilete. Pequenos problemas, como ralinhos desencaixados ou calhas obstruídas por folhas, podem trazer sérias consequências CAIXA D'ÁGUA A limpeza anual é obrigatória, mas o ideal é limpar a cada seis meses. Usar o faxineiro do prédio para esse tipo de serviço parece economia, mas a caixa pode ser danificada por procedimentos inadequados. Além disso, se a sujeira for embora pela tubulação, pode entupir as torneiras do primeiro andar do prédio. EQUIPAMENTOS DE SEGURANÇA PARA COMBATE À INCÊNDIO As escadas devem estar livres de cestos de lixo e com os corrimãos de acordo com a NBR 9077/85. Freqüentemente devem ser verificados o fechamento, a regulagem e a existência de selo identificando o fabricante das portas corta-fogo. Hidrantes e extintores devem ser revisados e recarregados anualmente. ÁREAS DE LAZER Os fabricantes de produtos químicos para piscina costumam oferecer treinamentos sobre tratamento da piscina. Se o zelador for o responsável pela limpeza da piscina, mantenha-o informado sobre o assunto, e siga sempre as recomendações dos fabricantes quanto ao armazenamento e manuseio dos produtos. A cada três meses, o zelador deve verificar se há farpas, ferrugem ou peças soltas nos brinquedos. Após as férias escolares, é prudente fazer uma manutenção mais minuciosa. Mensalmente, verificar os equipamentos dos salões de jogos, ginástica, festas, da quadra e da área da churrasqueira Check-list da manutenção do prédio FACHADAS A cada 5 anos recomenda-se lavagem da fachada. Para qualquer serviço de fachada (pintura ou restauro), verifique a idoneidade da empresa contratada e solicite documentos, como CNPJ e guias de recolhimento de INSS, FGTS, ISS, entre outros. Os funcionários precisam trabalhar com Equipamentos de Proteção Individual (EPIs) adequados. Lembre-se que o síndico é co-responsável em caso de acidentes. PORTÕES, INTERFONES, SISTEMAS DE ALARME E CFTV Manter um contrato único de manutenção para todos esses equipamentos (inclusive antena coletiva) garante economia para o condomínio, além de um atendimento mais rápido (deixe claro, em Elaborado por: Analisado por: Professor : Marcelo Gandra Falcone Alessandra Aparecida Vieira Marcelo Gandra Falcone QUANDO IMPRESSO CONSIDERAR PIRATARIA - CÓPIA NÃO AUTORIZADA
  • 58.
    UNINOVE Rev. B Engenharia deAvaliações e Perícias Manutenção Predial e Avaliação de Máquinas e Equipamentos 16/07/2011 Folha 58/424 contrato, o prazo de atendimento). 8.2.1 Lista sugestão da Cartilha do CONTRU para manutenção predial : Elaborado por: Analisado por: Professor : Marcelo Gandra Falcone Alessandra Aparecida Vieira Marcelo Gandra Falcone QUANDO IMPRESSO CONSIDERAR PIRATARIA - CÓPIA NÃO AUTORIZADA
  • 59.
    UNINOVE Rev. B Engenharia deAvaliações e Perícias Manutenção Predial e Avaliação de Máquinas e Equipamentos 16/07/2011 Folha 59/424 Lembrando que em vistorias de uso residencial multifamiliar, por recomendação do CONTRU da PMSP, independente do nível de inspeção contratado, o inspetor deve recomendar em seu laudo para o responsável pelo uso, elimine toda e qualquer anomalia, com a assistência de profissionais habilitados, para que a edificação existente, passe a atender às condições mínimas de segurança:        As instalações elétricas devem atender à NBR 5.410. As áreas comuns, por onde existam rotas de fuga, devem possuir iluminação de emergência, independente da rede geral, que atenda à NBR 10.898. A edificação deve estar protegida contra descargas elétricas atmosféricas, nos termos da NBR 5.419. As escadas devem ser guarnecidas por corrimãos, conforme a NBR 9.077. Cada pavimento deve possuir, no mínimo, dois extintores, sendo um de água pressurizada e outro de pó químico seco ou gás carbônico. Observar também a existência de riscos em áreas específicas, com casas de máquina, casas de medição e garagens, tudo conforme o Decreto Estadual 38.069/93 e 46.076/01. Se existir sistema de hidrantes, ele deve estar em perfeitas condições de uso, observando-se o estado de mangueiras, bicos, registros, bombas e reservas de água. Elaborado por: Analisado por: Professor : Marcelo Gandra Falcone Alessandra Aparecida Vieira Marcelo Gandra Falcone QUANDO IMPRESSO CONSIDERAR PIRATARIA - CÓPIA NÃO AUTORIZADA
  • 60.
    UNINOVE Engenharia de Avaliaçõese Perícias Manutenção Predial e Avaliação de Máquinas e Equipamentos     Rev. B 16/07/2011 Folha 60/424 Não devem existir dutos verticais, outrora usados como lixeiras. Se existirem, deverão ser lacrados com alvenaria, nos termos do Decreto 32.329/92. Todos os quadros e equipamentos de combate a incêndio devem estar sinalizados, bem como as rotas de fuga, conforme o Decreto 32.329/92. As instalações de gás devem atender ao Decreto 24.714/87. Deve existir na edificação uma brigada de combate a incêndio, formada por todos os funcionários do condomínio, nos termos da NBR 14.276. O cumprimento das normas de segurança da edificação é obrigação do responsável legal pelo condomínio, que responderá civil e criminalmente por quaisquer sinistros que vierem a ocorrer na edificação, conforme a Lei 4.591, de 16 de dezembro de 1964. Figura 20 – Vistoria Contru 2 ao Grande Premio São Paulo Indy 300 em 14 de abril de 2009 Figura 21 – Vistoria Contru 2 ao Grande Premio São Paulo Indy 300 em 14 de abril de 2009 Elaborado por: Analisado por: Professor : Marcelo Gandra Falcone Alessandra Aparecida Vieira Marcelo Gandra Falcone QUANDO IMPRESSO CONSIDERAR PIRATARIA - CÓPIA NÃO AUTORIZADA
  • 61.
    UNINOVE Rev. B Engenharia deAvaliações e Perícias Manutenção Predial e Avaliação de Máquinas e Equipamentos 16/07/2011 Folha 61/424 9) Orientações técnicas de anomalias. De acordo com a classificação expostas em 3.5 CLASSIFICAÇÃO DAS ANOMALIAS E FALHAS as deficiências observadas nas edificações podem ser classificadas em grupos de ANOMALIAS e FALHAS. Portanto, este Capítulo 9 irá apresentar as principais deficiências e orientações técnicas para a manutenção conforme o livro texto IBAPE –SP, PUJADAS, F.Z.A.; GOMIDE, T.L.F.; FAGUNDES, J.C.P. e OUTROS, Inspeção Predial –Check-Up Predial: Guia da Boa Prevenção. São Paulo: Leud, 2009. O capítulo 9 também tem por objetivo alertar para os perigos e riscos da má manutenção, e descreve, de forma genérica e simples, alguns procedimentos que auxiliam na elaboração de um plano de manutenção. Os principais sistemas construtivos estão abaixo descritos de forma simplificada e com explicações gerais sobre suas funcionalidades, a fim de ilustrar características previstas para o desempenho e, assim, chamar a atenção da importância das atividades de manutenção para a boa performance dos sistemas ao longo de sua vida útil. A perda de desempenho, portanto, incorre na perda da vida útil projetada ou prevista, redução potencial de acréscimo de sobrevida e agrava riscos do uso, conforto e segurança dos usuários, ou seja, a falta de manutenção coloca em risco a habitabilidade da edificação. Portanto, a utilização de procedimentos e rotinas de manutenção, aliadas a um planejamento estratégico de gestão dos imóveis, garante, além de um bom funcionamento dos sistemas, uma sobrevida e uma valorização imobiliária. 9.1. Sistema estrutural A inspeção deverá ser restrita aos elementos aparentes - pilares, vigas, lajes, consoles, cobertura, marquises e juntas de dilatação, reservatórios de água potável e casa de máquinas e jardineiras em geral, a fim de constatar a existência de anomalias e falhas, sem uso de ensaios tecnológicos, medições e outros mecanismos indiretos de aferições, bem como a exposição ambiental das estruturas, se revestidas ou não, idade e condições de manutenção. Dependendo das condições de exposição, podem ser recomendadas investigações mais aprofundadas quanto aos ataques de agentes químicos. É preciso investigar, também, no local, a ocorrência de intervenções posteriores à construção original, principalmente as que se referem aos serviços relacionados a qualquer tipo de reparo, reforço ou obras que resultem em carregamento adicional à estrutura. Para a tipologia em estudo, deve-se investigar, também, se já foi realizado algum tipo de monitoramento na estrutura ligado às cargas dinâmicas, dentre outros ensaios relacionados a carregamentos. Elaborado por: Analisado por: Professor : Marcelo Gandra Falcone Alessandra Aparecida Vieira Marcelo Gandra Falcone QUANDO IMPRESSO CONSIDERAR PIRATARIA - CÓPIA NÃO AUTORIZADA
  • 62.
    UNINOVE Rev. B Engenharia deAvaliações e Perícias Manutenção Predial e Avaliação de Máquinas e Equipamentos 16/07/2011 Folha 62/424 A fundação, sempre que houver anomalias relacionadas às trincas e manifestações típicas de recalques, deverá ter recomendada sua investigação. Dependendo das anomalias, pode-se sugerir vistoria em dia de jogo, para verificação preliminar de aspectos relacionados ao comportamento estrutural em relação a cargas dinâmicas (torcidas), e realização de ensaios tecnológicos, dentre outras avaliações mais aprofundadas. As estruturas, em que pese a sua aparente rigidez (imobilidade), caracterizam sempre sistemas com certo grau de movimentação (deformabilidade). Nesse sentido, os bens “imóveis” (simples coberturas, galpões, residências, ou edifícios) são, na realidade e internamente, parcialmente móveis, deformandose dentro de um nível natural, devido às forças induzidas pela gravidade ou por outros elementos da natureza. As forças induzidas pela gravidade são verticais (ocorrem no sentido de cima para baixo), compreendendo o peso próprio das estruturas, das alvenarias, dos revestimentos e as cargas decorrentes do uso do imóvel, como os pesos dos móveis, dos objetos, das pessoas, etc. Figura 22 – Esforços Verticais - IBAPE –SP, PUJADAS, F.Z.A.; GOMIDE, T.L.F.; FAGUNDES, J.C.P. e OUTROS, Inspeção Predial –Check-Up Predial: Guia da Boa Prevenção. São Paulo: Leud, 2009. Já as forças produzidas pelos elementos da natureza, tais como os ventos, a terra e a água, são difusas (ocorrem em várias direções). Figura 23 – Esforços Difusos - IBAPE –SP, PUJADAS, F.Z.A.; GOMIDE, T.L.F.; FAGUNDES, J.C.P. e OUTROS, Inspeção Predial –Check-Up Predial: Guia da Boa Prevenção. São Paulo: Leud, 2009. Elaborado por: Analisado por: Professor : Marcelo Gandra Falcone Alessandra Aparecida Vieira Marcelo Gandra Falcone QUANDO IMPRESSO CONSIDERAR PIRATARIA - CÓPIA NÃO AUTORIZADA
  • 63.
    UNINOVE Rev. B Engenharia deAvaliações e Perícias Manutenção Predial e Avaliação de Máquinas e Equipamentos 16/07/2011 Folha 63/424 A atuação conjunta de todas as forças acima citadas introduz sempre, em maior ou menor extensão, deformações nos sistemas estruturais. Os elementos responsáveis pela transmissão dos esforços ao solo (apoio) são chamados fundações. Figura 24 – Fundações - IBAPE –SP, PUJADAS, F.Z.A.; GOMIDE, T.L.F.; FAGUNDES, J.C.P. e OUTROS, Inspeção Predial –Check-Up Predial: Guia da Boa Prevenção. São Paulo: Leud, 2009. As fundações, de acordo com o tipo de solo e o montante da carga que irão receber da estrutura, podem ser classificadas em duas categorias: diretas (ou rasas) e profundas. Figura 25 – Fundações - IBAPE –SP, PUJADAS, F.Z.A.; GOMIDE, T.L.F.; FAGUNDES, J.C.P. e OUTROS, Inspeção Predial –Check-Up Predial: Guia da Boa Prevenção. São Paulo: Leud, 2009. Elaborado por: Analisado por: Professor : Marcelo Gandra Falcone Alessandra Aparecida Vieira Marcelo Gandra Falcone QUANDO IMPRESSO CONSIDERAR PIRATARIA - CÓPIA NÃO AUTORIZADA
  • 64.
    UNINOVE Rev. B Engenharia deAvaliações e Perícias Manutenção Predial e Avaliação de Máquinas e Equipamentos 16/07/2011 Folha 64/424 As fundações diretas ou rasas são aquelas executadas imediatamente abaixo dos baldrames, aí compreendidas as sapatas, os radiers e também as “ brocas “ (reforços de natureza empírica feitos em baldrames) Figura 26 – Fundações Rasas - IBAPE –SP, PUJADAS, F.Z.A.; GOMIDE, T.L.F.; FAGUNDES, J.C.P. e OUTROS, Inspeção Predial –Check-Up Predial: Guia da Boa Prevenção. São Paulo: Leud, 2009. As fundações profundas são, em geral, executadas com intervenção de equipamento ou de equipes especializadas, estando aí compreendidos vários tipos de estacas e os tubulões. Figura 27 – Fundações Profundas - IBAPE –SP, PUJADAS, F.Z.A.; GOMIDE, T.L.F.; FAGUNDES, J.C.P. e OUTROS, Inspeção Predial –Check-Up Predial: Guia da Boa Prevenção. São Paulo: Leud, 2009. As fundações são elementos de fundamental importância na estabilidade dos edifícios, respondendo por boa parte dos aspectos relacionados à solidez e segurança dos mesmos. Devem ser compatíveis com o arranjo estrutural, devendo, por mais simples que seja a obra, ser projetadas e ter sua execução supervisionada por profissionais qualificados, qualquer que seja o porte da edificação. Em edifícios dotados de subsolos ou em regiões com topografia acidentada, integram o conjunto as estruturas auxiliares denominadas contenção de confrontantes. Elaborado por: Analisado por: Professor : Marcelo Gandra Falcone Alessandra Aparecida Vieira Marcelo Gandra Falcone QUANDO IMPRESSO CONSIDERAR PIRATARIA - CÓPIA NÃO AUTORIZADA
  • 65.
    UNINOVE Rev. B Engenharia deAvaliações e Perícias Manutenção Predial e Avaliação de Máquinas e Equipamentos 16/07/2011 Folha 65/424 Estando normalmente em contato direto com o solo, resistem basicamente às forças horizontais da terra e das águas subterrâneas. Essas estruturas auxiliares são constituídas de muros de arrimo de vários tipos, como por exemplo, paredes diafragma e cortinas em concreto armado + perfis metálicos. As contenções de confrontantes, quando necessárias, são também elementos de fundamental importância na segurança dos usuários dos edifícios, merecendo, também, as recomendações acima citadas para as fundações. Figura 28 – Contenções Confrontantes - IBAPE –SP, PUJADAS, F.Z.A.; GOMIDE, T.L.F.; FAGUNDES, J.C.P. e OUTROS, Inspeção Predial –Check-Up Predial: Guia da Boa Prevenção. São Paulo: Leud, 2009. Elaborado por: Analisado por: Professor : Marcelo Gandra Falcone Alessandra Aparecida Vieira Marcelo Gandra Falcone QUANDO IMPRESSO CONSIDERAR PIRATARIA - CÓPIA NÃO AUTORIZADA
  • 66.
    UNINOVE Rev. B Engenharia deAvaliações e Perícias Manutenção Predial e Avaliação de Máquinas e Equipamentos 16/07/2011 Folha 66/424 Quanto às estruturas propriamente ditas, pode-se dizer que existem dois tipos de sistemas básicos: o sistema reticulado e o autoportante. No sistema reticulado a transferência de todas as cargas atuantes para as fundações, quer através dos pisos, quer pelos painéis de alvenaria (paredes), é feita através de elementos denominados de vigas e pilares. Viga é uma peça linear, cujo carregamento principal, advindo da laje, distribuise, também igualmente, para os pilares. Pilar é uma peça linear, carregamentos principais provenientes das vigas são nele concentrados e distribuídos para as fundações. No sistema autoportante uma parte ou toda a alvenaria transmite diretamente as cargas recebidas para as fundações. Qualquer modificação ou remoção de paredes nesse sistema precisa ser precedido de consulta ao construtor ou a projeto. Em ambos os sistemas, o elemento estrutural que recebe a ação direta das cargas devidas ao uso são as lajes, definidas como peças planas, cujo carregamento principal é aplicado ao longo de sua superfície. Figura 29 – Esforços Distribuídos ao longo da Supereficie - IBAPE –SP, PUJADAS, F.Z.A.; GOMIDE, T.L.F.; FAGUNDES, J.C.P. e OUTROS, Inspeção Predial –Check-Up Predial: Guia da Boa Prevenção. São Paulo: Leud, 2009. Elaborado por: Analisado por: Professor : Marcelo Gandra Falcone Alessandra Aparecida Vieira Marcelo Gandra Falcone QUANDO IMPRESSO CONSIDERAR PIRATARIA - CÓPIA NÃO AUTORIZADA
  • 67.
    UNINOVE Rev. B Engenharia deAvaliações e Perícias Manutenção Predial e Avaliação de Máquinas e Equipamentos 16/07/2011 Folha 67/424 Edifícios de vários pavimentos são em geral mais freqüentemente construídos em sistemas reticulados, embora também existam, na prática brasileira, edifícios altos em sistema autoportante Por outro lado, casas e pequenos edifícios de até dois pavimentos, com muita freqüência, são construídos em sistema autoportante, embora também possam sê-lo em sistemas reticulados. Em edifícios altos, em particular, é comum o aparecimento de fissuras e trincas nos andares mais altos devido à ação do vento sobre a estrutura. É comum, também, em qualquer edificação, o aparecimento de fissuras e trincas associadas a problemas nas fundações ou nas contenções de confrontantes. Fissura é uma abertura em forma de linha que aparece na superfície de qualquer material sólido, proveniente de ruptura sutil de parte de sua massa, com espessura de até 0,5 milímetro. Trinca é uma abertura em forma de linha que aparece na superfície de qualquer material sólido, proveniente de evidente ruptura de parte de sua massa, com espessura de 0,5 milímetro até 1,0 milímetro. Quando a flexibilidade do sistema reticulado, por problemas patológicos, apresenta riscos surgem as rachaduras e as fendas, ambas de maior gravidade, se comparadas às fissuras e trincas. Rachadura é uma abertura expressiva que aparece na superfície de qualquer material sólido, proveniente de acentuada ruptura de sua massa, podendo-se “ ver” através dela e cuja espessura varia de 1,0 milímetro até 1,5 milímetro. Fenda é uma abertura expressiva que aparece na superfície de qualquer material sólido, proveniente de acentuada ruptura de sua massa, causando sua divisão em partes separadas, com espessura superior de 1,5 milímetro. Ao deparar-se com anomalias dessa natureza, deve o observador procurar investigá-las, visando a sua melhor caracterização. Tipo de abertura Espessura padrão das aberturas Fissura Espessura < 0,5 milímetros Trinca O,5 a 1,0 milímetros Rachadura 1,0 a 1,5 milímetros Fenda Espessura > 1,5 milímetros Itens de Inspeção: Elaborado por: Analisado por: Professor : Marcelo Gandra Falcone Alessandra Aparecida Vieira Marcelo Gandra Falcone QUANDO IMPRESSO CONSIDERAR PIRATARIA - CÓPIA NÃO AUTORIZADA
  • 68.
    UNINOVE Engenharia de Avaliaçõese Perícias Manutenção Predial e Avaliação de Máquinas e Equipamentos  Rev. B 16/07/2011 Folha 68/424 Identificar se as anomalias encontram-se em elementos estruturais (lajes, vigas, pilares ou alvenaria portante, arquibancadas, lajes, consoles, marquises) o Armadura exposta o Baixo cobrimento da armadura o Corrosão de armadura o Formação de trincas por infiltração o Formações de trincas por processos de movimentações estruturais ou sobrecarga o Deterioração das características físico-químicas do concreto (formação de estalactites, corrosão, depósito de fuligens, formação de bolor, carbonatação, etc.) o Deformações excessivas (flechas, trincas em alvenarias, deformidades geométricas associadas ou não com trincas, etc.) o Estado físico de juntas de movimentação estrutural e elementos vedantes o Estado físico de aparelhos de apoio (deformação diferencial, trincas, esmagamentos, etc.) o Infiltrações de água em geral o Falhas de concretagem caracterizadas por: segregação do concreto, ninhos de concretagem, má vibração, concreto poroso de baixa resistência.  A fundação deverá ser investigada sempre que houver anomalias relacionadas à: trincas e manifestações típicas de recalques.  É obrigatória a inspeção de pilares que tenham tubulações hidráulicas anexadas ou embutidas, bem como próximos de caixas de passagem de águas pluviais, caixas de inspeção de esgotos, reservatórios de água inferiores do tipo cisterna, sistema de fossa.  Importante a constatação se o nível de lençol freático é alto, ou não, a fim de verificar eventuais anomalias ligadas às infiltrações por capilaridades em elementos estruturais.  Dependendo das anomalias constatadas, pode-se sugerir vistoria em dia de jogo para verificação preliminar de aspectos relacionados a comportamento estrutural em relação a cargas dinâmicas (torcidas). Também é possível, que as orientações técnicas no relatório de inspeção predial indiquem necessidade de realização de ensaios tecnológicos, dentre outras avaliações mais aprofundadas.  Verificar se a peça lesada está submetida, por algum agente externo (presença de água, por exemplo) a um processo de deterioração progressiva; Elaborado por: Analisado por: Professor : Marcelo Gandra Falcone Alessandra Aparecida Vieira Marcelo Gandra Falcone QUANDO IMPRESSO CONSIDERAR PIRATARIA - CÓPIA NÃO AUTORIZADA
  • 69.
    UNINOVE Engenharia de Avaliaçõese Perícias Manutenção Predial e Avaliação de Máquinas e Equipamentos  Rev. B 16/07/2011 Folha 69/424 Verificar a estabilidade ou progresso da anomalia. Há diversos processos de controle, sendo os mais práticos e comuns: o Preenchimento da abertura com selo de gesso. O fissuramento do gesso indica a continuidade da movimentação; o Fixação de plaqueta de vidro no local, com marcas de referências, observando-se o eventual deslocamento desta; o Marcação dos limites da lesão com lápis grosso ou tinta, observando-se se estes se alteram com o correr do tempo. Figura 30 – Controle de Lesão - IBAPE –SP, PUJADAS, F.Z.A.; GOMIDE, T.L.F.; FAGUNDES, J.C.P. e OUTROS, Inspeção Predial –Check-Up Predial: Guia da Boa Prevenção. São Paulo: Leud, 2009.  Verificar a magnitude da abertura. Recomenda-se que em qualquer caso onde sejam observadas mais largas do que a espessura de uma unha (0,5mm) estudo das causas da anomalia. Embora as causas das anomalias estruturais nem sempre sejam evidentes, deve-se chamar a atenção para as seguintes origens: o Acomodação da estrutura: Figura 31 – Acomodação da Estrutura - IBAPE –SP, PUJADAS, F.Z.A.; GOMIDE, T.L.F.; FAGUNDES, J.C.P. e OUTROS, Inspeção Predial –Check-Up Predial: Guia da Boa Prevenção. São Paulo: Leud, 2009. o Ausência de verga e contra verga: Elaborado por: Analisado por: Professor : Marcelo Gandra Falcone Alessandra Aparecida Vieira Marcelo Gandra Falcone QUANDO IMPRESSO CONSIDERAR PIRATARIA - CÓPIA NÃO AUTORIZADA
  • 70.
    UNINOVE Rev. B Engenharia deAvaliações e Perícias Manutenção Predial e Avaliação de Máquinas e Equipamentos 16/07/2011 Folha 70/424 Figura 32 – Ausência de Verga - IBAPE –SP, PUJADAS, F.Z.A.; GOMIDE, T.L.F.; FAGUNDES, J.C.P. e OUTROS, Inspeção Predial –Check-Up Predial: Guia da Boa Prevenção. São Paulo: Leud, 2009. o Esmagamento de elementos construtivos Figura 33 – Esmagamento - IBAPE –SP, PUJADAS, F.Z.A.; GOMIDE, T.L.F.; FAGUNDES, J.C.P. e OUTROS, Inspeção Predial –Check-Up Predial: Guia da Boa Prevenção. São Paulo: Leud, 2009. o Rotação Figura 34 – Rotação - IBAPE –SP, PUJADAS, F.Z.A.; GOMIDE, T.L.F.; FAGUNDES, J.C.P. e OUTROS, Inspeção Predial – Check-Up Predial: Guia da Boa Prevenção. São Paulo: Leud, 2009. o Escorregamento de solo Elaborado por: Analisado por: Professor : Marcelo Gandra Falcone Alessandra Aparecida Vieira Marcelo Gandra Falcone QUANDO IMPRESSO CONSIDERAR PIRATARIA - CÓPIA NÃO AUTORIZADA
  • 71.
    UNINOVE Rev. B Engenharia deAvaliações e Perícias Manutenção Predial e Avaliação de Máquinas e Equipamentos 16/07/2011 Folha 71/424 Figura 35 – Escorregamento de Solo - IBAPE –SP, PUJADAS, F.Z.A.; GOMIDE, T.L.F.; FAGUNDES, J.C.P. e OUTROS, Inspeção Predial –Check-Up Predial: Guia da Boa Prevenção. São Paulo: Leud, 2009. o Erosão e descalçamento de fundações Figura 36 – Erosão nas Fundações - IBAPE –SP, PUJADAS, F.Z.A.; GOMIDE, T.L.F.; FAGUNDES, J.C.P. e OUTROS, Inspeção Predial –Check-Up Predial: Guia da Boa Prevenção. São Paulo: Leud, 2009. o Cisalhamento: fadiga, efeitos térmicos, presença de vibrações, Figura 37 – Cisalhamento por esforços externos - IBAPE –SP, PUJADAS, F.Z.A.; GOMIDE, T.L.F.; FAGUNDES, J.C.P. e OUTROS, Inspeção Predial –Check-Up Predial: Guia da Boa Prevenção. São Paulo: Leud, 2009. Elaborado por: Analisado por: Professor : Marcelo Gandra Falcone Alessandra Aparecida Vieira Marcelo Gandra Falcone QUANDO IMPRESSO CONSIDERAR PIRATARIA - CÓPIA NÃO AUTORIZADA
  • 72.
    UNINOVE Rev. B Engenharia deAvaliações e Perícias Manutenção Predial e Avaliação de Máquinas e Equipamentos 16/07/2011 Folha 72/424 o Dano excepcional provocado pela natureza o Conservação de Estruturas de Concreto  Verificar corrosão. Quanto à corrosão das armaduras deve-se direcionar mais atenção: o À região da estrutura que estiver submetida a ciclos de molhagem e secagem; o estrutura voltada para a fachada, especialmente os elementos que retêm umidade; o laje descoberta; o pé de pilar; o locais confinados, como garagem; o Juntas de dilatação. o Ganchos de manutenção (balancins). o Observação: Muitas vezes existe a necessidade de remoção do revestimento e do concreto para melhor visualização da manifestação patológica. Deve ser previamente acordado com o síndico.  A fundação deverá ser investigada sempre que houver indicadores, tais como trincas e manifestações típicas de recalques; o É obrigatória a inspeção de pilares que tenham tubulações anexadas e juntas as caixas de passagem; o Verificação das localizações do sistema de fossa, filtro e reservatório inferior; o Verificação do nível do lençol freático.  Umidade em sub-solos: o regiões próximas a reservatórios inferiores o regiões próximas a fossas sépticas o regiões próximas a tubulações de água, esgoto, incêndio e gás  Micro-ambiente criado por sistema finais de esgoto: o sumidouros o valas de infiltração o caixas de visita - águas pluviais o sistema de drenagem  Identificar se as anomalias encontram-se em Cobertura, marquises e últimos pavimentos. Nesses locais, importante verificar os seguintes elementos: o Existência de calhas, caimentos, número de coletores pluviais; o Condições físicas dos telhados, telhas emadeiramento, principalmente em relação à fixação de telhas e pontos de infiltração; Elaborado por: Analisado por: Professor : Marcelo Gandra Falcone Alessandra Aparecida Vieira Marcelo Gandra Falcone QUANDO IMPRESSO CONSIDERAR PIRATARIA - CÓPIA NÃO AUTORIZADA
  • 73.
    UNINOVE Rev. B Engenharia deAvaliações e Perícias Manutenção Predial e Avaliação de Máquinas e Equipamentos 16/07/2011 Folha 73/424 o Existência de fissuras de origem térmica em alvenarias, ligações entre alvenarias e estrutura, além dos revestimentos; o Condições do sistema de impermeabilização, principalmente quanto ao seu desempenho e a presença de infiltrações em lajes, arquibancadas, etc.; o Condições de isolamento térmico se houver;  Reservatórios de água potável e casa de máquinas o Vistoriar os reservatórios, inferior e superior, e verificar a existência de trincas, descolamentos de manta e deterioração de sistemas de impermeabilização, corrosão de armadura, desplacamentos, etc.; o Verificar existência de vazamentos em geral; o Nas casas de máquinas, verificar fixação dos ganchos na laje de coberta; o Verificar existência de trincas na ligação; da estrutura de concreto armado da laje de coberta e alvenarias;  Jardineiras em geral o Verificar existência de infiltrações; o Verificar existência de impermeabilização e sua integridade; o Verificar existência de condensação.  Juntas de dilatação o Verificar as condições atuais do elastômero; o Verificar obstruções com acabamentos; o Verificar oxidação e corrosão de armadura nas faces de difícil acesso. Recomendação: O concreto após seu preparo, apresenta um Ph de 12,5 (Ph alcalino), com o decorrer do tempo, estando a estrutura exposta aos agentes da natureza existentes na atmosfera, tais como: poluição, sulfatos, maresia, gases, depósito de fuligens ácidas que atuam diretamente sobre a superfície do concreto, paulatinamente vão neutralizando os componentes básicos do concreto (hidróxido de cálcio), transformando-se em componentes neutros (sulfato e carbonato de cálcio), reduzindo o Ph do concreto. Essa redução de Ph implica no ataque ácido às armaduras, dando origem a formação de óxido de ferro o que provoca aumento na dimensão da secção do aço, expulsando a camada superficial do concreto (cobrimento), formando fissuras, além de deixar a armadura exposta. Em curto prazo, esse fenômeno pode provocar acidentes, no caso do desplacamento do concreto ocorrer em pontos altos da estrutura de um edifício, projetando porções de concreto na área adjacente. Nesse caso recomenda-se a remoção do material solto como providência imediata, evitando sua queda até que a estrutura venha a ser convenientemente reparada e protegida. Em longo prazo, com o agravamento Elaborado por: Analisado por: Professor : Marcelo Gandra Falcone Alessandra Aparecida Vieira Marcelo Gandra Falcone QUANDO IMPRESSO CONSIDERAR PIRATARIA - CÓPIA NÃO AUTORIZADA
  • 74.
    UNINOVE Rev. B Engenharia deAvaliações e Perícias Manutenção Predial e Avaliação de Máquinas e Equipamentos 16/07/2011 Folha 74/424 dos danos, pode-se chegar até ao comprometimento da estrutura e sua reparação será cada vez mais profunda e mais onerosa. Para edifícios com mais de 10 anos de construído deve ser realizada inspeção nos elementos de fundação (sapatas ou blocos), independentemente de apresentarem sintomas ou não na superestrutura (Amostragem de 30%, no mínimo, das sapatas ou blocos e pescoços de pilares) Outras questões de corrosão de armaduras dos elementos de concreto armado podem estar relacionadas às infiltrações de água provenientes de deficiências ou inexistências de sistema de impermeabilização em jardineiras, áreas externas de edifícios com subsolos, reservatórios de água, juntas de dilatação estrutural etc. No tocante às infiltrações de águas, sejam elas pluviais ou potáveis, alteram as características físico-químicas do concreto, abaixando o pH dos elementos, proporcionando ataques às armaduras e, consequentemente, formações de fissuras, de estalactites etc. Vale ressaltar que, na maioria das edificações com subsolos, existem as infiltrações de água próximas às juntas de dilatação ou mesmo junto a um ralo, abaixo de uma jardineira etc. Muitas vezes, a recomendação técnica pertinente para a correção dessas anomalias não reside somente na correção de sistemas de impermeabilização; é necessário recuperar o concreto armado do local com intervenção especializada, a fim de conter o avanço da corrosão das armaduras e da deterioração do concreto, restabelecendo as condições da peça. Figura 38 - Vista de uma junta de dilatação estrutural com infiltrações de água, além de deterioração estrutural. Edifício com aproximadamente 30 anos. Esse restabelecimento deverá observar: a remoção de camadas de concreto deterioradas e carbonatadas, limpezas, aplicação de argamassas especiais, Elaborado por: Analisado por: Professor : Marcelo Gandra Falcone Alessandra Aparecida Vieira Marcelo Gandra Falcone QUANDO IMPRESSO CONSIDERAR PIRATARIA - CÓPIA NÃO AUTORIZADA
  • 75.
    UNINOVE Rev. B Engenharia deAvaliações e Perícias Manutenção Predial e Avaliação de Máquinas e Equipamentos 16/07/2011 Folha 75/424 verificações de secção de armadura, que deverão ser feitas e especificadas por profissional especializado para a recuperação ou reforço da estrutura. O fenômeno acima exposto, envolvendo a corrosão de armaduras e, consequentemente, a formação de fissuras, em curto prazo pode provocar acidentes, no caso de o desplacamento do concreto ocorrer em pontos altos da estrutura de um edifício, projetando as porções de concreto em área adjacente. Nesse caso, recomenda-se a remoção do material solto como providência imediata, evitando sua queda até que a estrutura venha a ser convenientemente reparada e protegida. Em longo prazo, com o agravamento dos danos, pode-se chegar até ao comprometimento da estrutura e sua reparação será cada vez mais profunda e mais onerosa, ressaltando-se, ainda, que os elementos estruturais poderão perder suas capacidades resistivas, causando ruínas ou colapsos na estrutura. Observa-se, ainda, como um fator característico dos elementos em concreto. A capacidade de absorção capilar do mesmo, em função de sua porosidade e estrutura interna. Essa característica natural auxilia nas propagações de infiltrações e absorções de elementos nocivos a essas estruturas, sendo importante, sob o aspecto da conservação e manutenção, o controle dessa absorção capilar do concreto. A absorção capilar pode ser controlada mediante tratamento superficial com hidrorrepelentes, hidrofugantes e tamponamento de poros, conforme o caso e necessidade. Esse tratamento forma uma barreira reduzindo a absorção e o umedecimento do concreto, procurando:      Diminuir a circulação do vapor de água; Diminuir a taxa de absorção de água; Não captar ou aderir sujeiras facilmente; Não alterar suas características pela ação de raios solares durante sua vida útil projetada; Prolongar a vida útil da estrutura. Pode-se concluir que o tratamento do concreto, além de cumprir o objetivo estético, atua como componente na durabilidade e proteção da estrutura. Deve-se considerar que cada sistema de proteção existente no mercado tem uma vida útil, desde que feita a manutenção preventiva periódica de lavagem das estruturas aparentes. Essa manutenção preventiva prolonga a vida útil do sistema protetor, garantindo um benefício maior, a um custo menor, trazendo vantagens tanto sob o ponto de vista técnico, como econômico. A recuperação de concreto Elaborado por: Analisado por: Professor : Marcelo Gandra Falcone Alessandra Aparecida Vieira Marcelo Gandra Falcone QUANDO IMPRESSO CONSIDERAR PIRATARIA - CÓPIA NÃO AUTORIZADA
  • 76.
    UNINOVE Rev. B Engenharia deAvaliações e Perícias Manutenção Predial e Avaliação de Máquinas e Equipamentos 16/07/2011 Folha 76/424 armado aparente ou não poderá observar em linhas genéricas especificadas por empresa especializada, as seguintes orientações quanto às deteriorações decorrentes de infiltrações de água:  Impermeabilização das lajes de cobertura refeitas com tratamento de todas as juntas de dilatação. Depois de sanados os problemas relativos à presença de infiltrações de água, as estruturas de concreto aparentes internas e externas, bem como aquelas revestidas que já apresentam manchas amarronzadas da corrosão de armadura, desplacamentos, fissurações etc., deverão ser restauradas;  Remoção de todo o concreto desplacado e sem aderência;  Verificações quanto à camada e espessura de cobrimentos, tal que devem ser obedecidos os parâmetros da norma;  Verificação das profundidades de carbonatação, por teste de indicação de pH (indicador – fenoftaleína);  Remoção do concreto carbonatado e verificação da extensão da corrosão das barras de aço, bem como suas profundidades (só armadura de pele ou armações principais);  Remoção do óxido de ferro, produto da corrosão, pelo processo abrasivo, e verificação das secções de aço resultantes;  Observação das perdas maiores de secção de aço acima de 10% e observação da necessidade de remoção de profundidades muito acentuadas de concreto, sendo assim, necessidade de se calcular projetos de escoramentos e resistências residuais dos elementos estruturais;  Verificação da necessidade de realizar ponte de aderência química entre camadas de concreto a serem recuperadas;  Aplicação de inibidores de corrosão, por exemplo: base zinco, nas barras de aço;  Verificação de necessidade de estucamentos e aumento de cobrimentos mínimos em trechos onde não existem os mesmos, conforme determina a norma;  Limpeza geral de toda a estrutura, remoção de manchas de fuligem e microrganismos, lavagem geral com detergente neutro, estucamentos pontuais para recomposição de superfícies e aplicação de verniz base acrílico para áreas externas e base epóxi para áreas internas, considerando o concreto armado aparente; Para concreto armado revestido, realizar a recomposição do revestimento, verificando sua aderência ao concreto, bem como as camadas periféricas antigas; dependendo das condições gerais do revestimento, formações de fissuras e aderências, há necessidade de remoção completa do revestimento no pano de concreto recuperado, a fim de se executar novo revestimento no local. Elaborado por: Analisado por: Professor : Marcelo Gandra Falcone Alessandra Aparecida Vieira Marcelo Gandra Falcone QUANDO IMPRESSO CONSIDERAR PIRATARIA - CÓPIA NÃO AUTORIZADA
  • 77.
    UNINOVE Rev. B Engenharia deAvaliações e Perícias Manutenção Predial e Avaliação de Máquinas e Equipamentos 16/07/2011 Folha 77/424 9.2 Sistema de impermeabilização A inspeção deverá ser restrita à verificação com interface com sistemas estrutural, vedação e revestimentos. 9.2.1. Descrição e finalidade do sistema A alvenaria pode ser entendida como um subsistema da edificação, constituída por elementos que compartimentam e definem os ambientes. As alvenarias servem também de suporte e proteção para as instalações da edificação, quando embutidas, e criam as condições de habitabilidade para a edificação. As alvenarias também são utilizadas na elevação dos muros de divisa, bem como na construção de alguns tipos de jardineira. As alvenarias podem dividir ambientes internos da edificação ou, ainda, compor as fachadas. Chama-se alvenaria de vedação aquela cuja finalidade principal é o fechamento de vão, sem função estrutural. Elaborado por: Analisado por: Professor : Marcelo Gandra Falcone Alessandra Aparecida Vieira Marcelo Gandra Falcone QUANDO IMPRESSO CONSIDERAR PIRATARIA - CÓPIA NÃO AUTORIZADA
  • 78.
    UNINOVE Rev. B Engenharia deAvaliações e Perícias Manutenção Predial e Avaliação de Máquinas e Equipamentos 16/07/2011 Folha 78/424 9.2.2. Descrição de alguns dos tipos de alvenarias mais utilizados: 1. ALVENARIA CONVENCIONAL A alvenaria convencional pode ser entendida como um componente da edificação executado pela união entre tijolos ou blocos por juntas de argamassa, formando um conjunto rígido e coeso. Os materiais mais utilizados são os blocos cerâmicos ou em concreto. 2. ALVENARIA ESTRUTURAL A alvenaria estrutural é aquela que possui características de resistência a esforços solicitantes relacionados aos carregamentos das edificações. Normalmente, quando empregadas, dispensam as estruturas convencionais em concreto armado. Para esse tipo de vedação, empregam-se blocos especiais em cerâmica ou concreto. O processo construtivo desse tipo de alvenaria requer cuidados especiais quanto à amarração dos blocos, espaçamentos dos mesmos, além de outros detalhes técnicos previstos em projeto específico. 3. ALVENARIA DRYWALL Basicamente as paredes funcionam por uma estrutura de perfis de aço zincado, constituídos de guias horizontais e montantes verticais sobre os quais são parafusadas chapas de gesso acartonado em uma ou mais camadas, com parafusos fosfatizados especiais, o que evita a oxidação. Após o tratamento das juntas das chapas, as superfícies das paredes tornamse monolíticas, planas e lisas, prontas para receber qualquer tipo de acabamento, como: pintura, papel de parede, cerâmica, azulejo, laminados plásticos etc. Uma das características das alvenarias executadas em Drywall é a de permitir a instalação de material isolante acústico, entre as placas, durante a sua montagem. Quanto à sua finalidade, observam-se características semelhantes às dos outros tipos abordados neste item. Ressalva-se a praticidade na execução desse sistema. As alvenarias em Drywall somente devem ser usadas em ambientes internos, e quando empregadas em ambientes úmidos, tais como cozinhas e banheiros, deve-se empregar chapas específicas. 9.2.3. Principais anomalias e falhas Elaborado por: Analisado por: Professor : Marcelo Gandra Falcone Alessandra Aparecida Vieira Marcelo Gandra Falcone QUANDO IMPRESSO CONSIDERAR PIRATARIA - CÓPIA NÃO AUTORIZADA
  • 79.
    UNINOVE Rev. B Engenharia deAvaliações e Perícias Manutenção Predial e Avaliação de Máquinas e Equipamentos 16/07/2011 Folha 79/424 As anomalias e falhas mais comuns nas alvenarias acima citadas são: 1. 2. 3. 4. 5. 6. Trincas na região do encunhamento; Trincas nos encontros de alvenarias com a estrutura; Trincas na quina dos vãos de portas e janelas; Trincas no encontro de paredes; Destacamento de muretas em jardineiras; Trincas na base das paredes por defeito na impermeabilização dos alicerces; 7. A atuação de sobrecarga localizada, podendo provocar a ruptura dos componentes de alvenaria na região de aplicação de carga e/ou o aparecimento de fissuras inclinadas a partir do ponto de aplicação; 8. Muros, peitoris e platibandas que não estejam convenientemente protegidos por rufos poderão apresentar fissuras na sua parte superior, devido à absorção de água (chuvas), podendo ocorrer o destacamento do revestimento; 9. A movimentação térmica da estrutura pode causar destacamentos entre a alvenaria e a própria estrutura; 10. Os muros muito extensos podem apresentar fissuras verticais com aberturas da ordem de 2 a 3 mm. Em função da natureza dos componentes de alvenaria, as fissuras manifestam-se a cada 4 ou 5 m, podendo ocorrer nos encontros da alvenaria com os pilares ou mesmo no corpo da alvenaria; 11. As movimentações térmicas diferenciadas entre a platibanda e o corpo do edifício poderão resultar no destacamento da platibanda ou na formação de fissuras inclinadas na extremidade da mesma; 12. Deformações excessivas da estrutura, ocasionando esforços de compressão nas alvenarias com conseqüente fissuração. Elaborado por: Analisado por: Professor : Marcelo Gandra Falcone Alessandra Aparecida Vieira Marcelo Gandra Falcone QUANDO IMPRESSO CONSIDERAR PIRATARIA - CÓPIA NÃO AUTORIZADA
  • 80.
    UNINOVE Rev. B Engenharia deAvaliações e Perícias Manutenção Predial e Avaliação de Máquinas e Equipamentos 16/07/2011 Folha 80/424 9.2.3. Recomendações e orientações técnicas De maneira geral, tratando-se de alvenarias, é sempre recomendável que antes de se perfurar as paredes sejam consultados os projetos e detalhamentos contidos no manual do proprietário, o que evita a perfuração de tubulações de água, energia elétrica ou gás, nelas embutidas. Para o caso de edificações com alvenaria estrutural, as paredes não poderão ser alteradas de posição ou demolidas, pois, conforme já mencionado, fazem parte da estrutura da edificação. Como recomendações quanto à utilização das alvenarias, é importante se observar os seguintes aspectos, que visam a não ocorrência de problemas: 1. Para melhor fixação de peças ou acessórios, em alvenarias, usar apenas parafusos com buchas especiais; 2. NÂO sobrecarregar as paredes internas de Drywall, devendo ser observados os limites de carregamento previstos pelo fornecedor, bem como o disposto no manual do proprietário; 3. Procurar manter os ambientes bem ventilados. Nos períodos de inverno ou de chuva poderá surgir mofo nas paredes, decorrente de condensação de água por deficiente ventilação (principalmente quando houver armários embutidos junto à parede externa); 4. Observar a ocorrência de infiltrações, pois a ação de águas sobre os elementos da vedação pode ocasionar fissuras, além de proliferaçã de microorganismos nos revestimentos dessas vedações. Como recomendações e orientações sobre a manutenção ou reparação, destacam-se que: 1. Os destacamentos entre pilares e paredes deverão ser recuperados, observando sempre se a fissura instalada entre esses elementos é ativa ou passiva. Muitas vezes esses destacamentos são originários de problemas construtivos em decorrência da falta de elementos de reforço nos revestimentos; 2. Considerando as paredes em Drywall, os serviços de manutenção e reparos deverão seguir as recomendações básicas distintas para: a) reparos em pequenos e fissuras; b) reparos em trincas; c) aberturas/fechamento para manutenção; 3. Fundamentalmente, a incidência de fissuras deverá ter as causas exaustivamente pesquisadas pelo profissional habilitado, para que a prescrição dos reparos tenha a eficiência e a longevidade esperadas. Elaborado por: Analisado por: Professor : Marcelo Gandra Falcone Alessandra Aparecida Vieira Marcelo Gandra Falcone QUANDO IMPRESSO CONSIDERAR PIRATARIA - CÓPIA NÃO AUTORIZADA
  • 81.
    UNINOVE Rev. B Engenharia deAvaliações e Perícias Manutenção Predial e Avaliação de Máquinas e Equipamentos 16/07/2011 Folha 81/424 Observa-se, por fim, neste Capítulo, que as anomalias mais comuns aqui citadas poderão estar ligadas a aspectos construtivos, muitas vezes relacionados a problemas decorrentes em outros sistemas, tais como: estruturas, fundações etc. Considerados aspectos da boa manutenção e uso das vedações, ressalta-se a necessidade de se observar os aspectos de perfurações, alterações de posição de alvenarias, sobrecargas devido à fixação de estantes, prateleiras, armários etc., além de questões relacionadas à boa manutenção dos revestimentos aplicados sobre essas vedações, sejam esses em argamassa, gesso e/ou pintura. As alvenarias externas deverão ter a sua pintura mantida sempre em bom estado de manutenção/conservação, uma vez que a pintura é a única barreira contra a ação de intempéries. Figura 39 – Queda parcial de Parede estrutural – Foto Contru 2 Elaborado por: Analisado por: Professor : Marcelo Gandra Falcone Alessandra Aparecida Vieira Marcelo Gandra Falcone QUANDO IMPRESSO CONSIDERAR PIRATARIA - CÓPIA NÃO AUTORIZADA
  • 82.
    UNINOVE Rev. B Engenharia deAvaliações e Perícias Manutenção Predial e Avaliação de Máquinas e Equipamentos 16/07/2011 Folha 82/424 9.3. Sistema de Revestimentos 9.3.1. Descrição e finalidade do sistema O sistema de revestimento corresponde ao acabamento final de uma edificação, sendo a parte que se apresenta mais visível, com a finalidade principal de proteção de paredes, pisos e tetos, incluídos os forros. A função protetora é a que mais se destaca pela sua importância, pois visa a resguardar as superfícies a serem revestidas contra os agentes facilitadores da deterioração. Dentre esses agentes podem ser citados: a infiltração de água de chuva, da água do solo, água de uso e/ou de manutenção, além da ação de ventos, temperatura e umidade do ar, ação de fungos, ataque de roedores e outros agentes de carga, de uso e de sobrecarga. Além disso, o revestimento também cumpre a função estética, ligada ao conforto visual, envolvendo ainda questões de gosto pessoal, vindo a se construir um verdadeiro elemento de valorização do empreendimento. É baseado em uma diversidade muito grande de materiais, podendo ser composto por: argamassa, gesso, resinas, cerâmica, madeira, metal, plástico, vidro, papel, pedra etc. A escolha do tipo de revestimento depende, dentre outros fatores: da atmosfera local, do tipo de ambiente (interno ou externo), das condições de utilização, do tipo de base (metálica, de madeira, cimentícia, cerâmica etc.). O modo e especificação de preparo da base que receberá o revestimento são aspectos fundamentais para seu bom desempenho e aderência, evitando diversos problemas. 9.3.2. Principais anomalias e falhas Em linhas gerais, dois dos principais tipos de revestimentos utilizados nas construções podem ser citados, a argamassa e a cerâmica; importante destacar que, em argamassa, a definição correta do traço ou mistura dos matérias utilizados possibilitam a integridade e favorecem a longevidade do revestimento, evitando anomalias do tipo: fissuras de retração e pulverulências. Em revestimentos cerâmicos, deve-se observar o correto dimensionamento das juntas de trabalho, além do uso correto de argamassa colantes e desempenadeiras, evitando assim os desplacamentos e descolamentos. Para os revestimentos cerâmicos cabe destacar, também, que aspectos de manutenção nos rejuntes e materiais de preenchimento das juntas são importantes para prevenir a não infiltração de água, em casos de superfícies de fachadas, áreas externas, áreas molhadas etc. A infiltração poderá provocar problemas como manchamentos diversos, perda de aderência, deslocamentos, desplacamentos, além de fissuras. Elaborado por: Analisado por: Professor : Marcelo Gandra Falcone Alessandra Aparecida Vieira Marcelo Gandra Falcone QUANDO IMPRESSO CONSIDERAR PIRATARIA - CÓPIA NÃO AUTORIZADA
  • 83.
    UNINOVE Rev. B Engenharia deAvaliações e Perícias Manutenção Predial e Avaliação de Máquinas e Equipamentos 16/07/2011 Folha 83/424 Pisos Os pisos devem ter caimento adequado, quando se tratar de áreas molháveis ou laváveis, para se evitar os indesejáveis empoçamentos e infiltrações. Para casos de áreas sujeitas à ação direta de águas, seja pluvial ou não, deve haver os pontos de ralos para a captação dessas águas. As escadas devem ter proteção antiderrapante; inclusive os pisos em áreas externas não devem favorecer as condições de escorregamento, devendo, também, ter características antiderrapantes. A presença de manchas de ordens diversas, decorrentes de umidade ascendente (proveniente do solo) nos revestimentos em geral, é ocasionada principalmente pela deficiência da impermeabilização/drenagem das bases. Há manchas de eflorescências em determinados pisos, principalmente os de áreas externas, localizadas entre placas de revestimentos, que podem ser causadas por deficiências de caimentos do sistema de impermeabilização, empoçamentos de água e infiltrações. Essas manchas podem ser removidas com produtos específicos, porém sempre retornarão, pois sua causa está relacionada a fatores internos da edificação. Observa-se que, nesses casos, poderá haver a perda de aderência dos revestimentos e conseqüente deslocamento. Os deslocamentos de revestimentos podem estar relacionados à utilização de materiais inadequados, mão-de-obra e fiscalização deficiente, bem como pela utilização de ferramentas e equipamentos impróprios, em desobediência às recomendações dos fabricantes e das normas. Podem estar relacionados, também, a problemas na execução das bases, onde são aplicados com falta de procedimentos de limpeza, dentre outros fatores. Os deslocamentos também podem ocorrer em função de formações de fissuras decorrentes de aspectos relacionados a outros sistemas construtivos, como estruturas, fundações etc. Em extensões grandes de pisos, poderão surgir deslocamentos ou destacamentos devido a problemas relacionados à falta ou deficiência na juntas de trabalho do revestimento escolhido. As juntas e derivados, incluídos os próprios rejuntes, são causadores de incidência de diversas anomalias, quer pela sua ausência, conforme mencionado acima, quer pela sua especificação ou execução incorreta. Além disso, sua manutenção deve ser motivo de cuidados específicos, seguindo a orientação técnica de fabricantes e construtores. Elaborado por: Analisado por: Professor : Marcelo Gandra Falcone Alessandra Aparecida Vieira Marcelo Gandra Falcone QUANDO IMPRESSO CONSIDERAR PIRATARIA - CÓPIA NÃO AUTORIZADA
  • 84.
    UNINOVE Rev. B Engenharia deAvaliações e Perícias Manutenção Predial e Avaliação de Máquinas e Equipamentos 16/07/2011 Folha 84/424 Observa-se que as juntas de trabalho poderão existir, também, em locais de mudanças de tipos de revestimentos ou, até mesmo, de cores em um mesmo plano de revestimento. Paredes Nos revestimentos utilizados em paredes, de uma maneira geral, podem ser observadas as seguintes anomalias: formações de fissuras diversas, empolamentos, destacamentos e deslocamentos, infiltrações diversas de água e outros, falta de juntas de trabalho de revestimentos, deficiência em rejuntamentos, má especificação de rejuntes e juntas diversas etc. Tais anomalias podem ter suas causas relacionadas a fatores construtivos ou à má qualidade de materiais, enquanto as falhas são derivadas de atividades de manutenção mal empregadas. Observa-se que em áreas molhadas, como, por exemplo, áreas de boxe de chuveiro, a falta de procedimentos de rejuntamentos periódicos, bem como da limpeza dos rejuntes, ocasionam proliferações de fungos, além de infiltrações pelas frestas que aparecem na juntas. O uso impróprio de produtos com bases ácidas para a limpeza de determinados revestimentos poderão acarretar desgastes excessivos de películas, manchas etc. Importante, também, são as boas condições de alinhamento e esquadros das alvenarias e, conseqüentemente, dos revestimentos aplicados nelas, pois em superfícies desalinhadas, poderão resultar em espessuras exageradas de revestimentos, ocasionando fissuras ou outras anomalias, nas mesmas. Forros A presença de fissuras em forros de gesso liso, do tipo forros rígidos, pode ser causada por: deficiência ou falta de juntas de dilatação nos encontros com as paredes ou em “meios dos panos” de grandes dimensões; falta de estruturação ou reforço em forros com configuração de forma muito irregular; além de aberturas nos forros para instalação de embutidos (grelhas de ar condicionado e luminárias). A instabilidade estrutural dos forros em geral também está relacionada com a inobservância das normas ou das recomendações dos fabricantes quanto aos procedimentos de montagem e execução das estruturas de fixação/sustentação. Elaborado por: Analisado por: Professor : Marcelo Gandra Falcone Alessandra Aparecida Vieira Marcelo Gandra Falcone QUANDO IMPRESSO CONSIDERAR PIRATARIA - CÓPIA NÃO AUTORIZADA
  • 85.
    UNINOVE Rev. B Engenharia deAvaliações e Perícias Manutenção Predial e Avaliação de Máquinas e Equipamentos 16/07/2011 Folha 85/424 Podem ser utilizados matérias e elementos não adequados (sujeito à corrosão) ou ainda existir deficiência no seu dimensionamento. Podem existir, também, instabilidade e formações de fissuras, para casos de forros rígidos, devido à sobrecarga de elementos instalados e apoiados diretamente no forro (luminária, varal etc.), desprovido de reforço. São também identificadas deficiências de conforto térmico e acústico por especificação inadequada de materiais. Além disso, em muitos casos, há deficiências no dimensionamento ou inexistência de alçapões de acesso para realização das manutenções das instalações e dos elementos embutidos no forro. Fachadas Considerando as fachadas um dos principais sistemas construtivos da edificação, sob o ponto de vista de valorização dos empreendimentos, é importante observar que das inúmeras anomalias existentes em revestimentos de fachadas destacam-se como as de maior incidência: 1. Infiltrações de água e formações de fissuras em revestimentos devido à ausência de elementos arquitetônicos, tais como: beirais, rufos, frisos, rodapés, soleiras, respaldos, cantoneiras e outros detalhes fundamentais para a proteção da edificação contra a ação danosa das águas, favorecendo o seu direcionamento nas fachadas, evitando contatos diretos excessivos com a mesma. 2. Destacamentos de revestimentos devido à presença de fissuras, perda de aderência, infiltrações; 3. Falta ou deficiência de juntas de trabalho, bem como falta de manutenção dos materiais aplicados nessas juntas, proporcionando infiltrações, perdas de aderência, formações de fissuras etc.; 4. Falta de atendimento ao Código de Obras dos Municípios. No caso de São Paulo se determina a impermeabilização da fachada sul de uma edificação, considerando essa a de maior incidência de chuvas; 5. Fissuras relacionadas a movimentações térmicas entre componentes de estrutura e vedação, devido à falta de reforços em revestimentos de argamassa; 6. Manchas de umidade e eflorescências; 7. Ainda podem ser citadas anomalias relacionadas à má qualidade de materiais empregados, má especificação, falta de prumos e de planeza, etc. Os trechos das fachadas junto aos pisos devem ter proteção impermeabilizante para evitar a presença de umidade em razão da incidência de respingos de água que resvalam no piso, contribuindo para o aparecimento das fissuras, formação de fungos, manchamentos e presença de umidade. Elaborado por: Analisado por: Professor : Marcelo Gandra Falcone Alessandra Aparecida Vieira Marcelo Gandra Falcone QUANDO IMPRESSO CONSIDERAR PIRATARIA - CÓPIA NÃO AUTORIZADA
  • 86.
    UNINOVE Rev. B Engenharia deAvaliações e Perícias Manutenção Predial e Avaliação de Máquinas e Equipamentos 16/07/2011 Folha 86/424 9.3.3. Recomendações e orientações técnicas A manutenção dos revestimentos deve ser executada obrigatoriamente, dentro das condições de periodicidade e procedimentos de limpeza e conservação recomendados pelo fabricante, observada a contratação de mão-de-obra especializada, com a utilização de ferramentas e equipamentos adequados, bem como a aplicação de produtos de limpeza de natureza não agressiva, para que não danifiquem, precocemente, a superfície dos revestimentos. Deve ser ressaltada a necessidade da revisão periódica e regular dos rejuntes, a realização de limpeza dos ralos para evitar infiltrações, entupimentos e transbordamentos indesejáveis. Quanto à limpeza geral dos revestimentos, sejam eles internos e, principalmente, externos, consiste em um procedimento de manutenção eficiente para se garantir a durabilidade e a vida útil, sendo que, no caso de fachadas, a limpeza remove substâncias agressivas que ficam depositadas nos revestimentos, devido a problemas de fuligem, chuva ácida etc. Com relação ao uso de máquinas de jato de pressão de água, deve-se ter cuidados especiais com a regulagem das pressões utilizadas para não danificar juntas, rejuntes e materiais do próprio revestimento. A utilização associada dessas máquinas com produtos ácidos pode causar desgastes superficiais, eflorescências, manchas diversas etc. A utilização de água quente nesses procedimentos de limpeza evitada, consoante a pequena capacidade de suporte da tubulação (PVC branco) a altas temperaturas, o que poderá trazer danos à hidráulica, além de perdas excessivas de pigmentos, conforme revestimento a ser limpo. deve ser de esgoto instalação o tipo de Com relação à proliferação de fungos e outros microrganismos, vale observar que nesses casos há necessidade de uma limpeza específica com produtos à base cloro (água sanitária), a fim de eliminar o microrganismo. Caso essa limpeza não seja efetuada antes da aplicação de outro revestimento, por exemplo, pintura, haverá novamente o manchamento da superfície, mesmo que a eventual umidade tenha sido resolvida. Com relação a desníveis em pisos, entre 5 e 10 cm de diferença, deverá haver sinalizações, para se evitar quedas. A manutenção deve atentar para a detecção de todas as irregularidades que se apresentem nas superfícies dos revestimentos, pois elas denotam e sinalizam problemas que podem configurar uma situação de risco que necessite de intervenção adequada, inclusive em outros sistemas embutidos. Elaborado por: Analisado por: Professor : Marcelo Gandra Falcone Alessandra Aparecida Vieira Marcelo Gandra Falcone QUANDO IMPRESSO CONSIDERAR PIRATARIA - CÓPIA NÃO AUTORIZADA
  • 87.
    UNINOVE Rev. B Engenharia deAvaliações e Perícias Manutenção Predial e Avaliação de Máquinas e Equipamentos 16/07/2011 Folha 87/424 As intervenções devem ser implementadas no tempo correto, como forma de prevenir prejuízos físicos e inclusive financeiros, preservando a integridade da edificação e também dos seus ocupantes. Na maioria das vezes a solução caseira para os problemas não é recomendada, é contraproducente, devendo ser solicitada a presença de um profissional competente, que analise os dados e oriente corretamente a remoção de partes soltas, a reposição de partes danificadas, indicando procedimentos seguros e necessários, como forma de prevenir acidentes e assegurar a eficiência e longevidade das intervenções. Deve ser destacado que muitas vezes o problema que se origina nas estruturas da edificação e partes internas do revestimento mais profundo, no caso a base, se propaga e é transmitido para a camada mais externa do revestimento. O leigo pode indicar soluções incompatíveis e de desempenho inadequado para os problemas analizados. Figura 40 – IBAPE –SP, PUJADAS, F.Z.A.; GOMIDE, T.L.F.; FAGUNDES, J.C.P. e OUTROS, Inspeção Predial –Check-Up Predial: Guia da Boa Prevenção. São Paulo: Leud, 2009. Com relação às diversas fissuras que poderão existir nos revestimentos, observa-se que para qualquer intervenção deverá ser investigada a sua causalidade, além de determinar se a mesma encontra-se passiva ou ativa, conforme já descrito anteriormente no item Alvenaria. Observa-se, por fim, que se tratando de revestimentos de fachadas, em casos de descolamentos e desplacamentos, há a necessidade imediata de se Elaborado por: Analisado por: Professor : Marcelo Gandra Falcone Alessandra Aparecida Vieira Marcelo Gandra Falcone QUANDO IMPRESSO CONSIDERAR PIRATARIA - CÓPIA NÃO AUTORIZADA
  • 88.
    UNINOVE Rev. B Engenharia deAvaliações e Perícias Manutenção Predial e Avaliação de Máquinas e Equipamentos 16/07/2011 Folha 88/424 proceder à remoção desses elementos, a fim de não causar danos a transeuntes. Recomenda-se, ainda, quanto à limpeza periódica das fachadas, a cada dois ou três anos, principalmente aquelas em revestimentos cerâmicos, que se proceda a inspeção visual de rejuntes e juntas de trabalho, bem como exames de percussão em alguns trechos para se identificar eventuais descolamentos. Observa-se que essas limpezas devem ser feitas por empresas especializadas e, havendo quaisquer anomalias, deverá ser contratada consultoria especializada. Figura 41 – Revestimento Interno de Edificação Comercial em São Paulo – Foto Contru 2 - 2010 Elaborado por: Analisado por: Professor : Marcelo Gandra Falcone Alessandra Aparecida Vieira Marcelo Gandra Falcone QUANDO IMPRESSO CONSIDERAR PIRATARIA - CÓPIA NÃO AUTORIZADA
  • 89.
    UNINOVE Rev. B Engenharia deAvaliações e Perícias Manutenção Predial e Avaliação de Máquinas e Equipamentos 16/07/2011 Folha 89/424 9.4. SISTEMAS DE PINTURA 9.4.1. Descrição e finalidade do sistema A utilização do sistema de pintura como revestimento final das superfícies é pioneira, e ainda permanece largamente empregada na construção civil, sendo assim, foi destacado em relação aos outros tipos de revestimentos citados neste livro. Atua, prioritariamente, como elemento de proteção das bases ou das superfícies pintadas com elevada performance, além de ter função relacionada com o aspecto estético e visual, aliada à facilidade de execução e grande versatilidade para a decoração, consoante a diversidade de texturas, variedade de cores e apresentação de produtos com características inovadoras. Além disso, é um sistema que propicia facilidade de manutenção e tem um custo relativamente baixo. O revestimento de pintura é utilizado tanto em ambientes internos como externos, valorizando e destacando especialmente a apresentação das fachadas. Para cada tipo de superfície ou base de aplicação existe um tipo específico de tinta a ser indicado, muitas vezes com mais de uma opção na utilização dos produtos. No caso da madeira, indica-se o verniz, mas também pode ser usado o esmalte. Para os metais, também são indicados e muito utilizados os esmaltes. Para as alvenarias, concretos, rebocos, minerais porosos e similares, são indicadas e largamente aplicadas as tintas acrílicas (área externa) e PVA (área interna). Uma tinta, para ser considerada de boa qualidade, deve apresentar como características principais: a facilidade de aplicação, a estabilidade de cor e conservação da aparência, o bom rendimento e o poder de cobertura, além de elevada capacidade de resistência às intempéries. O resultado final do bom desempenho é alcançado desde que seja aliada a qualidade da tinta à boa técnica de aplicação, além de boa qualidade do substrato (base), envolvendo aspectos de: * Limpeza; * Inexistência de fissuras; * Inexistência de pulverulências; * Inexistência de microorganismos e umidade; * Dentre outros. Elaborado por: Analisado por: Professor : Marcelo Gandra Falcone Alessandra Aparecida Vieira Marcelo Gandra Falcone QUANDO IMPRESSO CONSIDERAR PIRATARIA - CÓPIA NÃO AUTORIZADA
  • 90.
    UNINOVE Rev. B Engenharia deAvaliações e Perícias Manutenção Predial e Avaliação de Máquinas e Equipamentos 16/07/2011 Folha 90/424 9.4.2. Principais anomalias e falhas Anomalias Eflorescência Causa Acontece quando a tinta é aplicada sobre reboco úmido ou devido à infiltração. Saponificação Alcalinidade natural da cal e do cimento que compõem o reboco. Calcinação Alcalinidade natural da cal e do cimento que compõem o reboco ou deterioração causada por ataques por intemperismo. Desagregamento Acontece quando a tinta é aplicada sobre superfície de reboco novo, não curado ou quando há presença de umidade. Descascamento Ocorre quando a tinta é aplicada em superfície pulverulenta, comprometendo a sua aderência na base. A condição de pulverulência é uma anomalia de revestimento de argamassa (base), conforme mencionado no item 5.3. Fissuras Ocorre quando o tempo de hidratação da cal antes da aplicação do reboco é insuficiente, ou seja, estão ligadas às condições do substrato (base). Em casos de vernizes, as fissuras na película poderão ser causadas por uso indevido da tinta em relção à exposição ambiental, como, por exemplo, uso de vernizes base epóxi em locais externos. Em casos de tintas base látex, as fissuras na película podem indicar a falta de repintura e a suplantação da vida útil do revestimento. Manchas Pode ocorrer, também, devido a sobreposições de trechos da tinta, incorrendo em emendas, além de deficiências de cobrimento da película ou poucas demãos de aplicação. Por pingos de chuva: extração de substâncias solúveis que afloram e mancham o filme da tinta ou ainda por ação de infiltrações, deposição de fuligens e sujidades, além de proliferação de fungos. Por retardamento de secagem em madeira: presença de resíduos de soda cáustica ou removedor utilizado na remoção de pintura antiga. Manchas amareladas em tetos e paredes são causadas pela presença de gorduras, óleos, fumaça de cigarros. Elaborado por: Analisado por: Professor : Marcelo Gandra Falcone Alessandra Aparecida Vieira Marcelo Gandra Falcone QUANDO IMPRESSO CONSIDERAR PIRATARIA - CÓPIA NÃO AUTORIZADA
  • 91.
    UNINOVE Engenharia de Avaliaçõese Perícias Manutenção Predial e Avaliação de Máquinas e Equipamentos Bolhas Trincas Enrugamento Crateras Rev. B 16/07/2011 Folha 91/424 Ocorre quando a tinta é aplicada sobre massa corrida PVA externamente, ou na repintura sobre tinta de má qualidade, ou quando a poeira do lixamento da massa não foi eliminada, ou quando a tinta não foi devidamente diluída. Podem ser causadas, também, devido a infiltrações de água, principalmente em películas mais impermeáveis como esmalte, látex acrílico etc. São causadas por movimentos da estrutura, com reflexos no substrato, retração da argamassa e outras, conforme citado em itens 5.1 de estrutura e 5.2 de alvenaria. Ocorre quando se aplicam demãos de tinta demasiadamente espessa, ou quando a aplicação é feita sobre superfícies ou ambientes com temperatura excessivamente quente. Também podem ser causados por ação de infiltrações de águas. Ocorre quando são utilizados solventes não apropriados na diluição da tinta. As anomalias podem estar relacionadas com a escolha inadequada do material a ser utilizado, bem como da situação ambiental, as condições climáticas, o estado que se encontram as superfícies a serem pintadas e, principalmente, quanto à execução da mesma com mão-de-obra não especializada, ou seja, são decorrentes, na sua maioria, de deficiência no processo executivo, como também podem se manifestar pelo desempenho dos materiais e por ataques externos. 9.4.3. Recomendações e orientações técnicas A manutenção do sistema de pintura deve ser realizada obedecendo às inspeções regulares ou sempre que necessário, para identificação da incidência de anomalias nas superfícies pintadas para que as intervenções necessárias sejam realizadas e programadas como forma de preservar a película da tinta e evitar prejuízos futuros. Quando são identificadas anomalias de origem interna, tais como: a incidência de umidade decorrente de infiltrações em lajes ou vazamentos de tubulações hidráulicas e presença de fissuras localizadas, dentre outras, as mesmas deverão ser previamente reparadas, segundo orientação técnica especializada, antes que se proceda a repintura localizada. Preliminarmente à repintura, deverão ser tomados todos os cuidados com a preparação e limpeza da superfície (substrato), já citados anteriormente. Todas as áreas internas como também as externas (fachada) devem ser repintadas, caso seja verificada essa necessidade por inspeções, observandoElaborado por: Analisado por: Professor : Marcelo Gandra Falcone Alessandra Aparecida Vieira Marcelo Gandra Falcone QUANDO IMPRESSO CONSIDERAR PIRATARIA - CÓPIA NÃO AUTORIZADA
  • 92.
    UNINOVE Rev. B Engenharia deAvaliações e Perícias Manutenção Predial e Avaliação de Máquinas e Equipamentos 16/07/2011 Folha 92/424 se a periodicidade recomendada pelo fornecedor ou construtor, em torno de cinco anos, bem como a lavagem das pinturas externas (fachadas), a cada dois anos. Observa-se que as periodicidades são decorrentes, também, do tipo de tinta utilizada, número de demão, consistência do material (se foi diluída ou não), dentre outras interferências relativas à qualidade da preparação da superfície, remoção da película antiga e mão-de-obra qualificada. Cabe destacar que, em casos de incidências de trincas diversas, eflorescências, destacamentos de argamassa, dentre outras anomalias já citadas em sistemas correlacionados ao de pintura, é importante a devida correção dos mesmos, com a investigação de suas causas, a fim de contribuir para o sucesso do programa de manutenção implantado na pintura. Por fim, é importante consignar que o bom desempenho de sistemas de pinturas depende das condições gerais de suas bases (substrato). Figura 42 – Pintura Artística em Edificação em São Paulo – Foto Contru 2 - 2008 Elaborado por: Analisado por: Professor : Marcelo Gandra Falcone Alessandra Aparecida Vieira Marcelo Gandra Falcone QUANDO IMPRESSO CONSIDERAR PIRATARIA - CÓPIA NÃO AUTORIZADA
  • 93.
    UNINOVE Rev. B Engenharia deAvaliações e Perícias Manutenção Predial e Avaliação de Máquinas e Equipamentos 16/07/2011 Folha 93/424 9.5. Sistemas de Esquadrias 9.5.1. Descrição e finalidade do sistema O sistema denominado esquadrias compreende todos os componentes construtivos (caixilhos) empregados na execução de portas, janelas, portões, grades, fachadas-cortina, envidraçamento etc. São os caixilhos responsáveis por promover a estanqueidade das aberturas de ventilação e iluminação dos edifícios, estando sujeitos a movimentações para sua abertura e fechamento. A função das esquadrias é proporcionar a separação entre ambientes contíguos de forma permanente no caso das esquadrias fixas, ou de forma variável no caso das esquadrias móveis. Essa separação permite contato visual com o exterior, iluminação ambiental, possibilita a ventilação natural, protege o interior das intempéries promove a segurança, limitando o acesso ao interior dos ambientes. As esquadrias móveis permitem a variação imediata de sua função: de totalmente vedada a totalmente aberta, passando por todas as funções intermediárias, individuais ou combinadas entre si, tais como iluminação, ventilação, iluminação com ventilação, passagem obstruída etc. O bom desempenho em uso e a durabilidade ao longo do tempo são parâmetros básicos para o comportamento das esquadrias e devem ser garantidos por um sistemático controle de qualidade. Esse controle de qualidade inicia-se ainda na fase de projeto, pela escolha do tipo e do material constituinte da esquadria em função do entorno e da utilização que ela terá. A correta instalação e a manutenção favorecem o bom comportamento global da caixilharia, sendo fundamentais para que atinja ou recupere o nível de desempenho desejado. Os acessórios de um caixilho, tais como fechos, roldanas, dobradiças, pivôs etc., devem contribuir para o bom desempenho do conjunto, e são os maiores responsáveis pelo bom funcionamento da esquadrias, notadamente no que se refere à estanqueidade ar/água, isolação termoacústica, ventilação e estabilidade estrutural. O dimensionamento dos acessórios deverá obedecer às necessidades da esquadria. As esquadrias possuem os mais sofisticados sistemas de juntas existentes em uma edificação e estas são as partes mais vulneráveis das mesmas, em especial as janelas, sob qualquer exigência de desempenho, particularmente sob o ponto de vista da estanqueidade ao ar, à água e à isolação acústica. Elaborado por: Analisado por: Professor : Marcelo Gandra Falcone Alessandra Aparecida Vieira Marcelo Gandra Falcone QUANDO IMPRESSO CONSIDERAR PIRATARIA - CÓPIA NÃO AUTORIZADA
  • 94.
    UNINOVE Rev. B Engenharia deAvaliações e Perícias Manutenção Predial e Avaliação de Máquinas e Equipamentos 16/07/2011 Folha 94/424 Componente essencial nas esquadrias é o selante, que é uma composição elastomérica à base de materiais próprios para vedação. Normalmente usado na calafetação, colagem e isolação entre dois suportes quaisquer. Sua principal característica deve ser a capacidade de absorver movimentações, trabalhando em conjunto com os suportes, sem se soltar. Existem vários tipos de selantes, sendo os mais conhecidos: massa de vidraceiro, selantes acrílicos, de poliuretano ou de silicone, entre outros. Figura 43 –Esquadrias- IBAPE –SP, PUJADAS, F.Z.A.; GOMIDE, T.L.F.; FAGUNDES, J.C.P. e OUTROS, Inspeção Predial – Check-Up Predial: Guia da Boa Prevenção. São Paulo: Leud, 2009. As gaxetas e escovas, também conhecidas como guarnições, são elementos pré-moldados, utilizados nos sistemas de vedação de fachada, por encaixe, que controlam ou impedem a passagem de ar, água ou ruídos em um determinado ponto. As gaxetas são extrudadas e vulcanizadas, de neoprene, PVC, EPDM (material elastômero), silicone etc., com secções diversas e em vários materiais. Já as escovas são construídas, geralmente, de fibras de polipropileno, que podem ser tratadas com silicones, de modo a melhorar seu desempenho em uso na estanqueidade à água, facilitando o deslizamento das folhas. Elaborado por: Analisado por: Professor : Marcelo Gandra Falcone Alessandra Aparecida Vieira Marcelo Gandra Falcone QUANDO IMPRESSO CONSIDERAR PIRATARIA - CÓPIA NÃO AUTORIZADA
  • 95.
    UNINOVE Rev. B Engenharia deAvaliações e Perícias Manutenção Predial e Avaliação de Máquinas e Equipamentos 16/07/2011 Folha 95/424 Normalmente as esquadrias de alumínio são as mais estanques em função dos componentes utilizados em sua fabricação, tais como as citadas gaxetas e escovas. Em geral, as esquadrias de ferro e as de madeira são menos estanques que as de alumínio por não possuírem os componentes de vedação. Figura 44 – Esquadrias - IBAPE –SP, PUJADAS, F.Z.A.; GOMIDE, T.L.F.; FAGUNDES, J.C.P. e OUTROS, Inspeção Predial –Check-Up Predial: Guia da Boa Prevenção. São Paulo: Leud, 2009. Considerando-se as características climáticas do Brasil, na maioria dos casos o problema maior é o calor excessivo no verão. Tal condição pode ser melhorada reduzindo-se ao mínimo a entrada de energia solar pela janela; nesse caso, são fundamentais as características do vidro (ou plástico) empregado nas áreas transparentes e translúcidas da janela e que são dadas pela sua transmitância (quantidade de luz que o atravessa em relação à quantidade de luz total que o atinge), pela absorção e pela refletância à radiação solar. As esquadrias devem atender aos seguintes requisitos de desempenho:  Resistência a cargas de vento;  Resistência a esforços de uso;  Resistência à intrusão;  Estanqueidade à água de chuva;  Estanqueidade ao ar;  Estanqueidade a insetos e poeiras;  Isolação acústica;  Iluminação;  Ventilação;  Facilidade de manuseio;  Aspecto; Elaborado por: Analisado por: Professor : Marcelo Gandra Falcone Alessandra Aparecida Vieira Marcelo Gandra Falcone QUANDO IMPRESSO CONSIDERAR PIRATARIA - CÓPIA NÃO AUTORIZADA
  • 96.
    UNINOVE Engenharia de Avaliaçõese Perícias Manutenção Predial e Avaliação de Máquinas e Equipamentos    Rev. B 16/07/2011 Folha 96/424 Durabilidade; Facilidade de manutenção (manutenabilidade); Economia. As esquadrias podem ser de ferro, aço, alumínio, PVC, madeira etc. ou uma combinação desses materiais: b. aço: em esquadrias esse material veio substituir com vantagens os antigos caixilhos de ferro e que, se adicionados outros elementos no processo de fabricação, se obtêm atributos específicos, como, por exemplo, os aços revestidos com zinco – aços galvanizados, estes últimos indicados para aplicações onde se deseja uma maior vida útil da esquadria; c. alumínio: a intensificação do uso do alumínio em esquadrias se deve à facilidade de conservação do material, dispensando raspagens e pinturas periódicas; à sua leveza aliada a uma grande resistência mecânica, que lhe permite facilidade de transporte e colocação; à durabilidade do material, previne a ação das intempéries ou quaisquer agentes agressivos naturais, como a maresia ou em regiões industriais; sua estabilidade dimensional, bem como às formas e acabamento que o alumínio permite na fabricação das esqua Como acabamentos superficiais do caxilho tem-se a anodização, cuja função é a melhoria estética das peças tratadas e proteção da corrosão ou de qualquer outro ataque exterior (ar salino, poluição atmosférica etc.), e a pintura eletrostática, líquida ou em pó, possuindo efeito estético e de proteção do alumínio; d. madeira: primeira matéria-prima utilizada para a fabricação de caixilhos nas edificações. Hoje, com a produção em escala industrial, os caixilhos de madeira retomam seu lugar no mercado como material nobre na fabricação de esquadrias. Em função do preço da matéria-prima, dificuldades de extração, tratamento e sofisticação da fabricação seu consumidaor passa a ser o público de primeiro nível e de mais alto poder aquisitivo. Deverão ser utilizados caixilhos fabricados a partir de madeira certificada (oriunda de reflorestamento ou originárias de florestas com manejo sustentável, devidamente acompanhada do selo de certificação); e. PVC: as esquadrias sistéticas, produzidas a partir do elemento químico Policloreto de Vinila - PVC na fabricação de caixilhos, têm propiciado bons resultados, dada a grande aplicabilidade do material. As janelas apresentam valores de resistência mecânica compatíveis com a sua utilização e estão adaptadas ao uso em quaisquer condições climáticas, até mesmo as extremas. Aditivos diversos, pigmentos, acrilatos e outros produtos tornam o PVC um material que pode ser modificado de acordo com as características desejadas quanto a: Elaborado por: Analisado por: Professor : Marcelo Gandra Falcone Alessandra Aparecida Vieira Marcelo Gandra Falcone QUANDO IMPRESSO CONSIDERAR PIRATARIA - CÓPIA NÃO AUTORIZADA
  • 97.
    UNINOVE Engenharia de Avaliaçõese Perícias Manutenção Predial e Avaliação de Máquinas e Equipamentos      Rev. B 16/07/2011 Folha 97/424 Resistência mecânica; Resistência ao impacto; Temperatura; Estabilidade de cor; Outros parâmetros que garantam a durabilidade dos componentes. 9.5.2. Principais anomalias e falhas As anomalias estão associadas a problemas originários na fase construtiva da edificação, de responsabilidade do construtor, relacionadas com deficiência de projeto, especificação equivocada ou material empregado divergente da indicação do projeto como também associados à utilização de mão-de-obra desqualificada ou destreinada. As falhas estão associadas à fase de utilização da edificação relacionadas com deficiência de manutenção, de responsabilidade do usuário ou proprietário. Normalmente as falhas ocorrem quando negligenciados os procedimentos de limpeza periódica (lavagem) ou a limpeza com procedimentos e procedimentos e produtos impróprios, ou ainda descuidos na revisão dos materiais utilizados nas vedações, fixação dos vidros e lubrificação das partes móveis. Dentre as anomalias mais comuns em esquadrias destacam-se: 1. Quanto ao projeto:     Projeto inadequado ou inexistência de projeto. Atualmente o não atendimento à acessibilidade é defeito grave, uma vez que esse conceito está muito bem definido e é obrigatório por força de leis e normas (Decreto Federal 5.296/04; Leis Federais 10.048/00 e 10.098/00; ABNT NBRs 9.050/04 e 15.260). A vida útil dos caixilhos está diretamente ligada ao material constituinte, sua adequação ao meio ambiente, a maneira como é utilizado e a manutenção que recebe. A má escolha dimensional da esquadra e seu posicionamento, em especial da janela, podem ocasionar desconforto térmico, luminoso, de ventilação, visual etc., além de dificuldades na manutenção. 2. Quanto à estanqueidade      Deficiência da estanqueidade para esquadrias de fachadas gera infiltrações de água de chuva dentro de ambientes como: quartos, salas, escritórios etc. As possibilidades de ocorrer infiltrações de água pelas janelas são: Nas juntas do marco ou contramarco da janela com o vão da fachada; Nas juntas do marco com a folha móvel da janela; Entre o pano de vidro e as travessas e montantes da folha da janela; Pelas frestas no encontro dos perfis do marco ou da folha; Elaborado por: Analisado por: Professor : Marcelo Gandra Falcone Alessandra Aparecida Vieira Marcelo Gandra Falcone QUANDO IMPRESSO CONSIDERAR PIRATARIA - CÓPIA NÃO AUTORIZADA
  • 98.
    UNINOVE Engenharia de Avaliaçõese Perícias Manutenção Predial e Avaliação de Máquinas e Equipamentos     Rev. B 16/07/2011 Folha 98/424 A inexistência ou insuficiência de furação para drenagem da água acumulada nos marcos. Tal anomalia decorre de deficiência ou ausência de projeto, uso Inadequado de materiais ou ainda pelos processos de montagem e instalações defeituosos. Ressalta-se que a instalação incorreta das janelas em obra é a origem de grande parte das patologias. As juntas são as partes mais vulneráveis das janelas quanto estanqueidade ao ar e a água, devendo-se tomar cuidados especiais quanto ao seu desenho, material que a constitui e o posicionamento da janela na fachada do edifício. No caso de esquadrias em alumínio, a falta de estanqueidade pode se dar pela baixa qualidade na confecção dos caixilhos, onde não existam componentes de vedação ou estes sejam com materiais impróprios e/ ou defeituosos. Observa-se que em determinados tipos de caixilhos pode haver calafetações feitas com selantes do tipo silicone, que podem gerar pontos de infiltrações de água, já que, muitas vezes, existem imperfeições e desalinhamentos nos vãos, além de problemas de falta de limpeza das superfícies quando da instalação dos mesmos, originando pontos falhos que apresentarão perda de desempenho precoce. Essa anomalia também poderá estar relacionada ao desgaste de gaxetas e escovas, dentre outros elementos vedantes. Em linhas gerais, observam-se alguns parâmetros relativos à perda da estanqueidade em caixilhos de alumínio em fachadas de edifícios do tipo cortina. Normalmente a vedação dos sistemas de esquadrias utilizados no Brasil está baseada no uso de guarnições e selantes de silicone (que pode ser silicone estrutural ou de vedação). Ambos podem ser instalados entre elementos de alumínio e vidro e são usados para controlar ou impedir a passagem de ar ou água no sistema.  Considerações sobre silicone estrutural: Normalmente, o uso de silicone estrutural nas fachadas-cortina se restringe à aderência do vidro, transferindo as cargas a que a fachada está sujeita a uma estrutura de alumínio adjacente. No entanto, falhas na aplicação do silicone estrutural podem causar, além dos problemas estruturais, incorrendo em deslocamentos do vidro, problemas de infiltração. Alguns dos problemas mais freqüentes observados na aplicação do silicone estrutural são:  Limpeza incorreta ou deficiente da superfície de aderência prévia à aplicação; Elaborado por: Analisado por: Professor : Marcelo Gandra Falcone Alessandra Aparecida Vieira Marcelo Gandra Falcone QUANDO IMPRESSO CONSIDERAR PIRATARIA - CÓPIA NÃO AUTORIZADA
  • 99.
    UNINOVE Engenharia de Avaliaçõese Perícias Manutenção Predial e Avaliação de Máquinas e Equipamentos    Rev. B 16/07/2011 Folha 99/424 Aplicação do cordão de silicone em dimensões não conformes com o projeto; Falhas de coesão no silicone por uso de material fora do prazo de validade. Considerações sobre silicone de vedação: Juntamente com as gaxetas, é o material mais usado em fachadas para vedação. Uma vez corretamente aplicado, deverá promover total impermeabilidade entre os setores vedados. Os potenciais e possíveis problemas de infiltração existentes em setores supostamente vedados com silicone de vedação são:  Má aderência do silicone à superfície aplicada, devido à limpeza incorreta ou qualidade insuficiente, considerando a superfície de aderência;  Aplicação do cordão de silicone em dimensões não conformes com o projeto;  Material fora do prazo de validade; e  Deterioração do cordão ou perda parcial da coesão por ação de agentes agressivos (mecânicos ou químicos). Cabe ressaltar o efeito nocivo que causa no EPDM em contato com o silicone.  Considerações sobre as gaxetas Os problemas mais freqüentes encontrados nas gaxetas, que resultam em infiltrações, são:  Má instalação da gaxeta no perfil;  Deslocamento da gaxeta durante a instalação;  Deslocamento por movimentação estrutural ou dilatação;  Deslocamento por pressão insuficiente na gaxeta.  Deterioração ou ressecamento prematuro do material por ação de agentes agressivos (mecânicos ou químicos), ou por deficiência no material. Considerando outros tipos de caixilhos de alumínio, que são os de cortina de fachadas, mas sim de janelas comuns com vidros e venezianas, as posições, dimensões e tipos de vedação de contramarcos podem contribuir para infiltrações de água nos ambientes internos. Já nas esquadrias de ferro e nas de madeira, a falta de estanqueidade pode ser decorrentes de falha de projeto, em que os ressaltos existentes são muito rasos, tendo em vista que os mesmos servem como barreiras contra a entrada de água ou vento. Em ambas as situações acima expostas, a variação dimensional das esquadrias é significativa, agravando mais os quadros de infiltrações.  Variações dimensionais Elaborado por: Analisado por: Professor : Marcelo Gandra Falcone Alessandra Aparecida Vieira Marcelo Gandra Falcone QUANDO IMPRESSO CONSIDERAR PIRATARIA - CÓPIA NÃO AUTORIZADA
  • 100.
    UNINOVE Rev. B Engenharia deAvaliações e Perícias Manutenção Predial e Avaliação de Máquinas e Equipamentos 16/07/2011 Folha 100/424 No processo de fabricação de esquadrias de madeira, é preciso que estas já estejam com os níveis de umidade bem baixos, indicados como pontos de secagem, caso contrário, as chamadas “madeiras verdes” em perfis da esquadria, isto é, sem estar completamente seca, continuam seu processo de secagem e podem sofrer deformações irreversíveis, mesmo depois de fixadas nos edifícios. A variação dimensional em esquadria de madeira também pode ser causada pela ação das intempéries, quando dor deixada em bruto sem a proteção do acabamento. 9.5.3. Dentre as falhas mais comuns em esquadrias destacam-se:  Deficiências na pintura, oxidação e corrosão em esquadrias e ferro Normalmente a corrosão é provocada pela ação da umidade e qualidade do ar, e como essas peças não recebem qualquer tipo de tratamento, a não ser uma camada irregular de zarcão ou primer de baixa qualidade, e são pintadas com pincel na maioria dos casos, sem remoção de impurezas, a corrosão e o princípio de oxidação já podem aparecer na fase de armazenamento, colocação e período de permanência nas paredes, antes do recebimento da pintura de acabamento. Dessa forma, há necessidade de se proceder a um tratamento com base anticorrosiva, anterior à aplicação da tinta. A deficiência nesse tratamento poderá provocar a degradação do acabamento, além da oxidação e corrosão da estrutura. Importante observar que, para esquadrias em ferro e madeira, aspectos de limpeza e manutenção são muito relevantes, tendo em vista que a deficiência de sistemas de pinturas nessas esquadrias pode acarretar a sua deterioração, incorrendo em problemas de corrosão de perfis, como exposto acima para o caso das de ferro, e apodrecimento, para o caso das de madeira.  Fissuras, escurecimentos, perda de cor etc. em acabamentos Normalmente essas anomalias são causadas pela ação da poluição ou dos raios solares. Esses acabamentos podem ser agredidos também pelo ataque de substâncias ácidas utilizadas, inclusive, na limpeza inadequada das esquadrias e seus acabamentos (pintado, envernizado, anodizado etc.). Outro tipo de anomalia, relacionada à deterioração do tipo de acabamento utilizado nas esquadrias, está relacionado à ação dos raios ultravioleta sobre pinturas em esmalte sintético, verniz ou base epóxi, que provocam perda de pigmentação, além de microfissuras nas películas do acabamento. Observa-se, desde já, que o acabamento a ser empregado em uma esquadria depende do tipo de material que a constitui, do local em que está instalada e Elaborado por: Analisado por: Professor : Marcelo Gandra Falcone Alessandra Aparecida Vieira Marcelo Gandra Falcone QUANDO IMPRESSO CONSIDERAR PIRATARIA - CÓPIA NÃO AUTORIZADA
  • 101.
    UNINOVE Rev. B Engenharia deAvaliações e Perícias Manutenção Predial e Avaliação de Máquinas e Equipamentos 16/07/2011 Folha 101/424 sua exposição ambiental, de tal forma que acabamentos com base epóxi, por exemplo, não podem ser aplicados em locais externos, sujeitos à incidência de raios solares, tendo em vista a má performance desse material nessas condições, incidindo na formação de fissuras na película. Falta de manutenção na desobstrução dos furos de drenagem na água acumulada nos marcos. Perda de mobilidade e/ou deficiências na abertura e fechamento das esquadrias As falhas mais fáceis de serem percebidas nas esquadrias ocorrem normalmente por causa dos acessórios, havendo casos de necessidade de remoção da própria esquadria para substituição ou reparos, como, por exemplo, roldanas, braços e outros componentes móveis.  Os painéis basculantes ou de correr, por exemplo, podem apresentar dificuldades de movimentação em função do desgaste das escovas, rodízios, pivôs, gaxetas, ou mesmo após diversas camadas de pintura que diminuem as folgas necessárias para o bom funcionamento. Esquadrias em madeira podem apresentar empenamentos, causados pelo tipo de madeira utilizada na fabricação ou, ainda, pela ação de infiltrações de água, causando variações dimensionais nas peças. Com relação às ferragens de fixação das esquadrias internas ou externas, tais como dobradiças, pode haver problemas de mau dimensionamento na escolha do tipo de dobradiça em relação ao peso próprio ou tamanho da esquadria instalada.  Folga na fixação dos vidros, vidros soltos ou quebrados A folga na fixação de vidros, gerando situações perigosas, pode decorrer da deterioração dos componentes em plástico, borracha sintética e da massa de vidraceiro, ou, ainda, de problemas relacionados às dimensões das esquadrias em relação aos vidros utilizados. Com relação a vidros quebrados sem a ação de vandalismos, pode-se investigar causas relacionadas a deformações excessivas dos montantes das esquadrias, gerando tensões não suportadas pelos vidros. Cabe destacar neste item que, para esquadrias de coberturas como Sky lights pérgulas, clarabóias, dentre outras, ou ainda para sacadas, peitoris, guardacorpos, no caso da utilização de vidro, esse deverá ser laminado ou aramado, devido a questões de segurança quando da quebra deles.  Quanto aos selantes Os selantes, quando não atendidas satisfatoriamente as solicitações de dilatação e contração dos materiais suportes, podem se romper ou descolar. Elaborado por: Analisado por: Professor : Marcelo Gandra Falcone Alessandra Aparecida Vieira Marcelo Gandra Falcone QUANDO IMPRESSO CONSIDERAR PIRATARIA - CÓPIA NÃO AUTORIZADA
  • 102.
    UNINOVE Rev. B Engenharia deAvaliações e Perícias Manutenção Predial e Avaliação de Máquinas e Equipamentos 16/07/2011 Folha 102/424 A má limpeza e umidade dos substratos podem acarretar a falta de adesão dos selantes ao suporte, e a conseqüente má vedação do conjunto. Nem todos os selantes são compatíveis com todos os tipos de substratos. As incompatibilidades devem ser conhecidas, pois provocam ausência ou perda de adesão, contaminação irreversível dos materiais, manchas e ataques aos suportes.  Deterioração das esquadrias em madeira devido ao ataque de pragas Esse tipo de anomalias acontece, principalmente, quando a madeira utilizada em sua confecção não foi previamente imunizada. O tratamento da madeira é feito pela imersão total das peças em tanques que contenham os produtos químicos que irão dar a proteção. Após a imersão, as peças são armazenadas para uma nova secagem, podendo-se fazer o tratamento em autoclave, sob pressão, permitindo proteção com maior profundidade nos perfis. 9.5.3. Recomendações e orientações técnicas Com relação às recomendações e orientações gerais, visando aos aspectos de manutenção e boa conservação das esquadrias, destacam-se rotinas simples relacionadas a: 1.Limpeza: Quando em período de obra ou reforma, em caso de respingamento de argamassa, é aconselhável remover a massa com pano úmido, antes que ela endureça, e se já endurecida, retirar o excesso com “tocos” de madeira para não atingir a camada de primer, e depois da acabamento superficial com lixa fina, tomando cuidado para não danificar a camada de pintura. Não se deve utilizar materiais abrasivos na limpeza, como esponja de aço ou de espuma de poliuretano, já que esses materiais causam riscos nos acabamentos, fazendo com que os mesmo percam a finalidade protetora sobre as esquadrias. Para a limpeza, é recomendável o uso de apenas água e, se necessário, sabão neutro, em intervalos de tempos compatíveis com o volume de sujeira, pois produtos químicos com base tipo solventes e, principalmente, ácidos, danificam os acabamentos aplicados sobre as esquadrias e, muitas vezes, os próprios materiais componentes dessas, causando corrosão, perdas de cor, manchamentos, dentre outras anomalias. Observa-se que toda vez que uma esquadria de ferro ou madeira for limpa, ela deverá se seca com pano macio, a fim de evitar empenamentos ou problemas de corrosão, mesmo que estas estejam protegidas com acabamentos de pintura. Elaborado por: Analisado por: Professor : Marcelo Gandra Falcone Alessandra Aparecida Vieira Marcelo Gandra Falcone QUANDO IMPRESSO CONSIDERAR PIRATARIA - CÓPIA NÃO AUTORIZADA
  • 103.
    UNINOVE Rev. B Engenharia deAvaliações e Perícias Manutenção Predial e Avaliação de Máquinas e Equipamentos 16/07/2011 Folha 103/424 Não usar produtos ácidos para lavagem de pisos, pois haverá corrosão dos trilhos e dos batentes, e como seja necessário o uso de tais produtos, os caixilhos devem ser forrados com papel e papelão, fechando-se toda a entrada de ar nos caixilhos. Caso a geometria e dimensões das janelas impeçam ou dificultem demasiadamente o acesso às suas superfícies exteriores a partir do interior da edificação, quando se impõe que a manutenção seja feita por fora da edificação, deve-se levar em consideração a necessidade de equipar a edificação com instrumental adequado ao procedimento dessa limpeza. 2. Reavivar cores e brilho: Em caixilhos anodizados ou pintados, é recomendável, para se reavivar o brilho e as cores dos acabamentos, a título de manutenção preventiva, usar cera automotiva. Esse procedimento, para os caixilhos anodizados, de difícil manutenção corretiva, pode prolongar o aspecto estético do acabamento. 3. Pintura e repintura de caixilhos de ferro, aço e madeira: O sistema de pintura para caixilhos de ferro e aço é composto por tinta de acabamento, tinta intermediária e tinta de fundo ou primer. As tintas de fundo são empregadas com a finalidade de promover a aderência do sistema de pintura ao substrato ou inibir a corrosão. No entanto, não são elaboradas para resistirem sozinhas ao meio ambiente, necessitando de tintas de acabamento. Acabamentos superficiais para os caixilhos de madeira são imprescindíveis para sua proteção contra irradiação, calor, abrasão, poluição atmosférica e umidade, tais como tintas, vernizes e outros. Considerando a ação deletéria de agentes externos, como sol e chuva, que favorecem a degradação dos acabamentos de pintura, e observada a vida útil das tintas empregadas, bem como a qualidade das aplicações feitas, recomenda-se, a cada três a cinco anos, uma nova pintura. Observa-se que a periodicidade sugerida poderá se prolongar de acordo com o local, devido a questões climáticas e de exposição, bem como atividades periódicas de limpeza. Sendo assim, deve-se sempre observar questões de desgaste na pintura original. Para uma nova pintura há sempre a necessidade de se remover completamente a existente, lixando-a (em caso das metálicas, principalmente nas partes já oxidadas), além de se efetuar limpeza e verificação da necessidade de aplicação de algum fundo nivelante ou preparador de base para a futura aplicação da película de tinta ou acabamento escolhido. Elaborado por: Analisado por: Professor : Marcelo Gandra Falcone Alessandra Aparecida Vieira Marcelo Gandra Falcone QUANDO IMPRESSO CONSIDERAR PIRATARIA - CÓPIA NÃO AUTORIZADA
  • 104.
    UNINOVE Rev. B Engenharia deAvaliações e Perícias Manutenção Predial e Avaliação de Máquinas e Equipamentos 16/07/2011 Folha 104/424 Importante observar, também, que para esquadrias em ferro deve ser executado um tratamento com produtos anticorrosivos e nova limpeza leve para posterior aplicação da tinta. Em estruturas com perda de secção devido a processos corrosivos avançados, deve-se verificar a necessidade de substituição do perfil ou preenchimentos por meio de soldas. Nos casos de caixilhos de chapas pré-zincadas e acabamento com pintura eletrostática, não é necessária a repintura. Eventuais retoques, em caso de riscos na pintura, pontos de ruptura da película ou outros problemas, devem ser feitos conforme orientação dos fabricantes. Observa-se que a falta de limpeza da base, conforme mencionado no item de anomalias, provoca imperfeições, além de comprometer a aderência da tintas, reduzindo sua vida útil. Alerta-se que, para esquadrias em ferro com prévio tratamento galvânico, os procedimentos para repintura devem observar a conservação da camada protetora galvanizada, sendo que limpezas abrasivas poderão danificar a referida proteção feita quando da fabricação da esquadria. Recomenda-se, nessa situação, que seja aplicado um fundo do tipo Galvit para que haja a aderência da tinta escolhida na superfície do ferro galvanizado, pois, mesmo isenta de poeiras, a película de tinta não adere em superfícies com esse tipo de tratamento anticorrosivo. È bom destacar, também, que, antes de executar qualquer tipo de reforma ou pintura em paredes, é preciso proteger as esquadrias com fitas adesivas de PVC – não utilizar fitas tipo crepe, que podem manchar o caixilho. No caso de contato do material utilizado com a esquadria, deve-se limpar com pano seco e, depois, com pano umedecido em água com detergente neutro. Por fim, neste item de repintura, é importante reforçar que a falta de remoção das películas de tinta em procedimentos de repintura pode acarretar diversas anomalias já citadas, destacando-se a perda de mobilidade da esquadria e a falta de aderência da nova película de tinta. 4.Perda de mobillidade: Para que os caixilhos pivotantes e basculantes conservem sua boa mobilidade, é importante a lubrificação moderada desses pontos sempre que necessário, conforme orientações dos fabricantes dos caixilhos. Para rodízios e acessórios de aço, recomenda-se a lubrificação com óleo pelo menos uma vez por ano. Para portas internas ou externas em madeira ou ferro, deve-se observar a conservação das dobradiças, incluindo a sua periódica lubrificação. Elaborado por: Analisado por: Professor : Marcelo Gandra Falcone Alessandra Aparecida Vieira Marcelo Gandra Falcone QUANDO IMPRESSO CONSIDERAR PIRATARIA - CÓPIA NÃO AUTORIZADA
  • 105.
    UNINOVE Rev. B Engenharia deAvaliações e Perícias Manutenção Predial e Avaliação de Máquinas e Equipamentos 16/07/2011 Folha 105/424 Além dos aspectos mencionados de manutenção preventiva, importante observar que a perda de mobilidade também pode ter causa relacionada a outros fatores descritos no item de anomalias. 5.Juntas e selantes: Recomenda-se uma inspeção periódica na juntas vedadas para verificar o bom estado. Juntas trincadas, descoladas, fissuradas, quebradiças ou em processo de desagregação devem ser refeitas para garantir a estanqueidade e a proteção dos materiais contra o escorrimento interno de água. Os sinais visíveis de problemas de vedação podem ser observados quando há bolhas na tintas, ferrugem, bolor, degradação da argamassa ou outros tipos de anomalias. De uma maneira geral, as juntas têm seu tempo de vida vinculado às características do selante utilizado, pela exposição maior ou menor ao sol e aos agentes climáticos e pelas movimentações de compressão e extensão dos suportes. Para a aplicação dos selantes, as juntas devem ser limpas com solventes, normalmente indicados pelos fabricantes, jato de areia ou ar comprimido. De acordo com os substratos, deve-se aplicar uma camada de primer, também recomendado pelos fabricantes, entre outros cuidados. O suporte deve estar limpo (sem traço de óleo ou pó) e seco. Os selantes, após a aplicação, demandam um período de cura total que assegura suas propriedades adesivas e mecânicas, variando segundo as condições climáticas e o tipo de junta, devendo-se procurara recomendações dos fabricantes. 6.Perda da estanqueidade: Em esquadrias de alumínio, incluindo a do tipo cortina, recomenda-se a verificação de gaxetas, escovas, selantes externos etc. Importante destacar que, quando da limpeza ou repintura de fachadas, cabe inspecionar, remover, limpar e reaplicar os selantes externos, a fim de garantir a impermeabilidade desses elementos. A perda da estanqueidade é uma anomalia que pode ter suas causas ligadas a outros problemas que não só o de manutenção, sendo recomendável que nesses casos seja contratado um especialista para a correta apuração de causas e recomendações de manutenção corretiva. Elaborado por: Analisado por: Professor : Marcelo Gandra Falcone Alessandra Aparecida Vieira Marcelo Gandra Falcone QUANDO IMPRESSO CONSIDERAR PIRATARIA - CÓPIA NÃO AUTORIZADA
  • 106.
    UNINOVE Rev. B Engenharia deAvaliações e Perícias Manutenção Predial e Avaliação de Máquinas e Equipamentos 16/07/2011 Folha 106/424 9.6. Sistema de instalações elétricas prediais e Sistema de Proteção contra Descargas Atmosféricas (SPDA) As edificações, quer sejam individuais ou coletivas, são alimentadas pela rede pública de distribuição de energia elétrica. Essas redes poderão ainda ser aéreas ou subterrâneas. Nas edificações de maneira geral, a tensão secundária de distribuição é do tipo baixa tensão, diretamente ligada na própria rede, ou transformada de alta tensão para baixa por postos primários, os quais contemplam transformadores e demais componentes. Quando a carga instalada ultrapassar valores estabelecidos pelas normas pertinentes, o fornecimento será por meio de rede ou linha pública de distribuição aérea em tensão primária de distribuição, denominada de média tensão, que alimentará a subestação transformadora da unidade consumidora. Basicamente, da rede de distribuição até o consumidor final, pode-se destacar o ramal de ligação que é a interligação da rede até o poste particular, coluna fundida no local ou fachada, denominado ponto de entrega. O ramal de entrada é aquele correspondente à interligação entre o ponto de entrega até a caixa ou quadro, instalado dentro da edificação, onde se encontram a proteção geral da edificação e a medição de energia consumida. Dessa caixa ou quadro partem os circuitos que alimentam os quadros de distribuição localizados nas unidades de consumo, por exemplo: apartamentos, escritórios ou o quadro de energia de uma residência. Figura 45 – Entrada de energia - IBAPE –SP, PUJADAS, F.Z.A.; GOMIDE, T.L.F.; FAGUNDES, J.C.P. e OUTROS, Inspeção Predial –Check-Up Predial: Guia da Boa Prevenção. São Paulo: Leud, 2009. Elaborado por: Analisado por: Professor : Marcelo Gandra Falcone Alessandra Aparecida Vieira Marcelo Gandra Falcone QUANDO IMPRESSO CONSIDERAR PIRATARIA - CÓPIA NÃO AUTORIZADA
  • 107.
    UNINOVE Rev. B Engenharia deAvaliações e Perícias Manutenção Predial e Avaliação de Máquinas e Equipamentos 16/07/2011 Folha 107/424 Basicamente, em um prédio de apartamentos, a entrada e a distribuição de energia consistem em uma caixa de distribuição geralmente localizada no térreo ou subsolo, instalada junto às caixa da administração, caixa da bomba de incêndio, local este denominado de Centro de medição. Do centro de medição partem os ramis denominados prumadas, os quais alimentam os quadros de distribuição dos apartamentos, quadros de força das bombas de água, quadros de força dos elevadores, quadros de força dos portões elétricos, e quadros de iluminação e tomadas das áreas comuns. Figura 46 – Distribuição de Energia - IBAPE –SP, PUJADAS, F.Z.A.; GOMIDE, T.L.F.; FAGUNDES, J.C.P. e OUTROS, Inspeção Predial –Check-Up Predial: Guia da Boa Prevenção. São Paulo: Leud, 2009. A finalidade principal das instalações elétricas é a de proporcionar, de maneira segura e eficiente, o fornecimento de energia elétrica em diversos pontos de consumos projetados e instalados nos imóveis. Esse fornecimento seguro permite que os usuários consigam utilizar essa energia em seus equipamentos, tais como: geladeiras, fornos, motores, chuveiros, aparelhos elétricos em geral, além de iluminação. No caso de edificações comerciais, as instalações elétricas são mais complexas, as cargas finais a serem alimentadas, muitas delas, referem-se a equipamentos de grande porte, por exemplo: grandes elevadores, escadas rolantes, sistema de ar condicionado, sistema de ventilação/exaustão, quadros diversos de força e iluminação. Essas cargas são alimentadas por circuitos oriundos de cabinas de barramento ou de quadros gerais de distribuição relativos às subestações de média tensão, geralmente de grande potência. As instalações elétricas devem ser projetadas, executadas e mantidas, de modo a fornecer essa segurança ao usuário contra contatos acidentais, proteções contra curtos-circuitos e sobrecargas, além de permitir a funcionalidade adequada, de maneira que não provoque interrupções ou desligamentos não previstos. Elaborado por: Analisado por: Professor : Marcelo Gandra Falcone Alessandra Aparecida Vieira Marcelo Gandra Falcone QUANDO IMPRESSO CONSIDERAR PIRATARIA - CÓPIA NÃO AUTORIZADA
  • 108.
    UNINOVE Rev. B Engenharia deAvaliações e Perícias Manutenção Predial e Avaliação de Máquinas e Equipamentos 16/07/2011 Folha 108/424 Observa-se que uma instalação elétrica deve ter um acompanhamento constante da carga instalada de projeto, bem como eventuais acréscimos desta em função de mudanças de uso ou costumes, pois caso contrário poderão ocorrer acidentes devido à sobrecarga, gerando inclusive incêndios, como os já ocorridos na cidade de São Paulo, os famosos Edifícios Andraus, Center 3, Joelma e outros. Figura 47 – Grandes Incêndios de São Paulo. Em 1974, foi criado o GEP – Grupo Especial de Peritagem, após duas grandes tragédias que, em meados da década de 70, abalaram nossa cidade incêndios do Edifício Andraus e Joelma Incêndios que motivaram a criação da 1ª Legislação de Segurança do Município de São Paulo: Decreto nº 10.878/ fevereiro de 1974 Voltando aos sistemas Elétricos, a manutenção periódica também é muito importante, a fim de verificar e corrigir maus contatos, corrosões, sobreaquecimentos, pois tais providências constituem um fator importante para o aumento da vida útil da instalação, além de conferir aspectos de conservação e de segurança aos usuários.    Esquema simplificado da entrada de edificação residencial Esquema simplificado da entrada e distribuição de energia Esquema simplificado do telefone, interfone, TV a cabo, luz de emergência, luz escadaria, para-raios. Dentro do sistema de instalações elétricas para efeito de inspeção predial, podemos considerar também o sistema de telefonia, interfone, TV a cabo, CFTV (Circuito Fechado de TV) e geradores. O quadro de telefonia principal denominado quadro de Distribuição Geral-DG, geralmente instalado no pavimento térreo, recebe o cabo telefônico constituído de pares metálicos ou fibra ótica de onde, por meio de blocos terminais, derivam-se os cabos secundários que passam em caixas de passagem e dessas para o usuário final. Elaborado por: Analisado por: Professor : Marcelo Gandra Falcone Alessandra Aparecida Vieira Marcelo Gandra Falcone QUANDO IMPRESSO CONSIDERAR PIRATARIA - CÓPIA NÃO AUTORIZADA
  • 109.
    UNINOVE Rev. B Engenharia deAvaliações e Perícias Manutenção Predial e Avaliação de Máquinas e Equipamentos 16/07/2011 Folha 109/424 Em edificações antigas observa-se que a fiação referente ao interfone e TV a cabo caminham junto com as fiações e caixas do sistema telefônico, e sempre que possível esses circuitos devem ser instalados independentes em eletrodutos rígidos próprios. O sistema de CFTV consiste basicamente em monitores e controladores dentro da quarita quando prédio residencial, e em sala nas edificações comerciais, além das câmaras instaladas em pontos estratégicos. Os geradores utilizados nos edifícios residenciais geralmente atendem um dos elevadores, bombas, iluminação das escadarias e halls. Suas potências mais usuais variam entre 75 kVA a 150 kVA, dependendo do fabricante e da carga. Já nas edificações comerciais, as capacidades são maiores, ou seja, potências na ordem de 300 kVA a 450 kVA, como também outros em torno de 2.000 kVA, quando edificações de grande porte. 9.6.1) Entradas em média Tensão (NBR 14039 2003 Instalações Elétricas de (Alta tensão) Média tensão) Considerada a atividade de grandes edifícios ou atividades de uso comercial, ou seja, com a utilização de uma potência elétrica considerável para iluminação, aquecimento e força, é comum a entrada de energia elétrica ser fornecida em média tensão (11,4kV a 13kV). Da subestação principal e outras subestações unitárias instaladas na edificação derivam- se os circuitos alimentadores dos vários quadros gerais de distribuição e outros secundários relativos às cargas finais: iluminação, aquecimento, força, aparelhos diversos De acordo com essa situação típica, a lista de verificação para o sistema de instalações elétricas considera esse tipo de entrada, bem como existência de subestações que podem seguir o descrito abaixo: . 1.Entrada de energia Poste da rede da concessionária: cruzetas, chaves fusíveis, para raios, terminais, aterramento, ferragens. Saída dos cabos, subterrâneos ou aéreos. 2.Subestação principal Transformadores:a óleo ou a seco. Verificar vazamentos, condições das buchas de alta e baixa tensão, conexões, radiadores, balonetes, instrumentos de medição (temperatura), nível de óleo, relé a gás, estado da sílica gel, aterramentos. Cubículo metálico ou construção em alvenaria: ferrugens, aterramento, acesso, limpeza, portas, cobertura. Elaborado por: Analisado por: Professor : Marcelo Gandra Falcone Alessandra Aparecida Vieira Marcelo Gandra Falcone QUANDO IMPRESSO CONSIDERAR PIRATARIA - CÓPIA NÃO AUTORIZADA
  • 110.
    UNINOVE Rev. B Engenharia deAvaliações e Perícias Manutenção Predial e Avaliação de Máquinas e Equipamentos 16/07/2011 Folha 110/424 Disjuntores a pequeno volume de óleo, ou a gás: mecanismo, buchas, níveis de óleo, rele de sobrecorrente, comando, equipamentos de proteção e manobra ( bastões, luvas, estrados, alavancas, tapetes, diagramas). Chaves seccionadoras a comando simultâneo: mecanismo, contatos. Para raios: aterramento, buchas Transformadores de corrente e de potencial: estado geral Medidores de energia: ativa e reativa, lacres, outros. 3.Ramais principais ( saídas dos transformadores) Estado geral dos circuitos, isolação, emendas, limpeza, caixas de passagem. Banco de dutos, eletrodutos. Saídas e entradas, terminais de ligação. 4.Subestações unitárias Transformadores: a óleo ou a seco: vazamentos, buchas de alta e baixa tensão, conexões, radiadores, balonetes, instrumentos de medição ( temperatura, nível de óleo) , estado da sílica gel, aterramentos. Flanges entre o transformador e painéis de alta e de baixa tensão. Cubículo metálico ou construção em alvenaria: ferrugens, aterramento, acesso, limpeza, portas, cobertura. Disjuntores a pequeno volume de óleo, ou a gás: mecanismo, buchas, níveis de óleo, rele de sobrecorrente, comando, equipamentos de proteção e manobra (bastões, luvas, estrados, alavancas, tapetes, diagramas). Chaves seccionadoras a comando simultâneo: mecanismo, contatos Para raios: aterramento, buchas Quadros de alta tensão e de baixa: estado geral, limpeza, acessibilidade, aterramento, medidores de corrente, tensão, potência. Diagramas, equipamentos de proteção. Recomendação: Para edificações com grande porte nas instalações elétricas, tais como edifícios de escritórios, shopping centers, igrejas etc., é importante à manutenção preditiva através de medições com aparelhos termográficos, a fim de verificar aquecimento em cabos nos quadros elétricos e de ajustar rotinas de manutenção preventiva. Elaborado por: Analisado por: Professor : Marcelo Gandra Falcone Alessandra Aparecida Vieira Marcelo Gandra Falcone QUANDO IMPRESSO CONSIDERAR PIRATARIA - CÓPIA NÃO AUTORIZADA
  • 111.
    UNINOVE Rev. B Engenharia deAvaliações e Perícias Manutenção Predial e Avaliação de Máquinas e Equipamentos 16/07/2011 Folha 111/424 9.6.2) Instalações Elétricas (Atendimento a NBR 5410): Principais anomalias e falhas. Evidentemente, como em qualquer outro sistema, existem anomalias associadas a questões construtivas, sendo que essas podem ter sua origem ligada a deficiências nos cálculos da potência instalada, cálculos de demanda, dimensionamentos de circuitos, condutores, ou até em má previsão de cargas, como também problemas relacionados à execução, além de defeitos nos materiais e equipamentos utilizados. Em conseqüência desses problemas, poderá haver diversas anomalias relacionadas à falta de proteção de circuitos, sobrecargas, instabilidades elétricas, choques elétricos etc. Com relação às falhas, elas podem ocasionar problemas devido à manutenção não apropriada, ou mesmo à falta de manutenção, o não acompanhamento no controle da qualidade de serviços, materiais e mesmo sem orientação e controle na operação do sistema. Figura 48 – “Gambiarras” – Cartilha do CONTRU em SCI Destacando-se as anomalias e falhas que podem ter sua origem relacionada a fatores externos, tem-se:      Surtos de tensão e corrente nas redes de distribuição de energia, podendo provocar queima de equipamentos ou outros danos às instalações elétricas; Interrupção de fornecimento de energia devido a fatores naturais, tais como: chuvas, tempestades, ventos etc.; Interrupção de fornecimento de energia devido a abalroamentos de postes, desmoronamentos etc.; Descargas elétricas, provocadas por raios ou falhas em sistemas de proteção contra descargas atmosféricas etc.; Ataque de pragas urbanas, como cupins, que se alojam e destroem os fundos de madeira dos quadros elétricos e de telefonia. Elaborado por: Analisado por: Professor : Marcelo Gandra Falcone Alessandra Aparecida Vieira Marcelo Gandra Falcone QUANDO IMPRESSO CONSIDERAR PIRATARIA - CÓPIA NÃO AUTORIZADA
  • 112.
    UNINOVE Rev. B Engenharia deAvaliações e Perícias Manutenção Predial e Avaliação de Máquinas e Equipamentos 16/07/2011 Folha 112/424 Como falhas decorrentes de problemas relacionados à manutenção, uso e operação inadequada do sistema, têm-se:   Modificações das instalações elétricas, mudando as características iniciais do projeto elétrico, principalmente com acréscimo de cargas ou potências, acarretando problemas de sobrecarga; Uso de proteções com disjuntores ou fusíveis substituídos de forma inadequada, não obedecendo à capacidade de corrente dos condutores, à demanda e a outros fatores que devem ser considerados para o correto dimensionamento. Essa situação merece destaque, pois comumente vê-se o uso de disjuntores com capacidades maiores que as correntes elétricas suportadas pelos cabos ou fios que estão nele ligados e protegidos. É comum, quando um determinado disjuntor “cai” com freqüência, o usuário trocá-lo por outro com amperagem maior. Esse fato faz com que o disjuntor não desarme, não cortando a corrente elétrica daquele circuito, podendo provocar o sobreaquecimento de cabos e fios, gerando fatores de alto risco de incêndio.       Aumento de carga elétrica sem supervisão técnica com o abuso de aparelhos eletroeletrônicos, havendo desequilíbrio de cargas entre as fases e instabilidade elétrica na instalação; Uso de benjamins em tomadas com diversos aparelhos elétricos ou eletroeletrônicos ligados, causando sobrecargas e podendo, inclusive, danificar determinados aparelhos, o que devido a isso surgem microfaiscamentos, entre essas conexões que vão corroendo progressivamente os metais das tomadas e plugs, chegando a um limite em que a temperatura do condutor danifica a isolação e o curto-circuito pode ocorrer, gerando incêndios; Utilização de disjuntores unipolares agrupados montados lado a lado para circuitos com mais de uma fase. Esse tipo de instalação, apesar de muito comum, não é considerado dispositivo multipolar, significando que, no caso de uma sobrecarga ou curto-circuito, pode haver o desarme de apenas uma das fases, o que pode incorrer em perigo ao usuário, pois haverá ainda alimentação elétrica no circuito; Uso de fiações e cabos elétricos aparentes, sem proteção de eletrodutos rígidos ou ainda sem isolação especial que permita esse tipo de exposição direta; Uso de cabos e fios elétricos em pequenas extensões, com muitas emendas; Uso de fios e cabos inadequados com isolações danificadas ou fabricados com espessuras reduzidas em relação a valores especificados, podendo provocar curto-circuito, mesmo que a corrente de demanda não ultrapasse os valores limites; Elaborado por: Analisado por: Professor : Marcelo Gandra Falcone Alessandra Aparecida Vieira Marcelo Gandra Falcone QUANDO IMPRESSO CONSIDERAR PIRATARIA - CÓPIA NÃO AUTORIZADA
  • 113.
    UNINOVE Engenharia de Avaliaçõese Perícias Manutenção Predial e Avaliação de Máquinas e Equipamentos   Rev. B 16/07/2011 Folha 113/424 Mão-de-obra sem a competência técnica necessária para a instalação de todos os componentes, mesmo que esses estejam absolutamente conformes aos requisitos técnicos definidos em normas; Uso de fitas isolantes de má qualidade ou ainda de outros materiais que não possuem as propriedades necessárias para a isolação correta nas emendas. Outras anomalias e falhas podem ocorrer devido a sobretensões e quedas de tensão.   Sobretensões são fenômenos muito raros de se verificarem nas instalações domésticas, podendo ocorrer devido à operação de chaves em circuitos de média tensão da concessionária, ou devido a descargas atmosféricas na rede. Existem proteções de para-raios de linha que atenuam as mesmas. Na hipótese remota das sobretensões chegarem aos circuitos de baixa tensão, atingirá os consumidores em maior ou menor grau, podendo provocar queima de aparelhos e lâmpadas; Queda de tensão da rede, de uma ou mais fases, pode acarretar a queima de aparelhos ou motores, quando não possuem proteções contra subtensão. Cabe destacar que, na grande maioria dos incêndios provocados por questões relativas à instalação elétrica, a causa mais comum reside em modificações inadequadas nas instalações, mau estado de conservação e falta de manutenção. Itens de Inspeção:  As Instalações elétricas devem estar de acordo com NBR 5410/ABNT.  A proteção contra contatos diretos e indiretos e choques. A proteção contra contatos diretos e indiretos deve ser providenciada com barreiras, invólucros ou placas isolantes instaladas nos quadros elétricos, a fim de impedir que o usuário toque em partes da instalação energizadas. Já a proteção contra choques em geral deverá ser efetuada com dispositivos de proteção a corrente diferencial residual (DR ou IDR), instalados nos circuitos elétricos, além de todas as partes metálicas do quadro elétrico estarem aterradas.  Falta de aterramentos. Com relação a aterramentos, é necessário que todas as instalações elétricas estejam aterradas, com destaque para as tomadas de uso especial, como, por exemplo, para ar condicionado, microondas, máquina de lavar roupa, chuveiro elétricos etc. Ressalta-se que pontos de iluminação de área molhadas, como banheiro, também devem ter suas instalações aterradas. Importante frisar que os fios verdes existentes em diversos aparelhos elétricos devem ser ligados ao fio terra existente nos imóveis. Reforça-se que os aparelhos, chuveiros elétricos, Elaborado por: Analisado por: Professor : Marcelo Gandra Falcone Alessandra Aparecida Vieira Marcelo Gandra Falcone QUANDO IMPRESSO CONSIDERAR PIRATARIA - CÓPIA NÃO AUTORIZADA
  • 114.
    UNINOVE Engenharia de Avaliaçõese Perícias Manutenção Predial e Avaliação de Máquinas e Equipamentos                Rev. B 16/07/2011 Folha 114/424 torneiras elétricas e aquecedores de água devem ter resistência blindada e sempre devem estar aterrados, evitando correntes de fuga e desarmamento indevidos do dispositivo diferencial DR. Falta de limpeza periódica em quadros elétricos, dentre outros. Os locais onde se encontram os quadros elétricos, quer os internos - as unidades de consumo, quer os localizados no centro de medição, casa de bombas, casa de máquinas dos elevadores, devem manter-se limpos e livres de objetos tais como: jornais, latas de tintas, papéis, solventes, móveis. As portas e tampas dos mesmos não podem ficar obstruídas. Não permitir presença de materiais inflamáveis, materiais explosivos, poeiras em locais onde existam equipamentos elétricos em geral (quadros, cabos, bombas, motores). Presença de extintor inadequado ou sinalização insuficiente. Lembrar que na ocorrência de incêndio em equipamentos elétrico, deve utilizar extintor (gás carbônico, pó químico) - classe C. Nunca usar água ou outro agente que a contenha água em sua composição. Conexões inadequadas. As conexões entre condutores e equipamentos através de terminais devem ser compatíveis. Para se evitar efeito galvânico, evitando-se corrosões entre os materiais, o que provoca resistência, dificultando a passagem da corrente elétrica e conseqüentemente aquecimento indesejado. Uso de disjuntores de maior capacidade do que o cabo elétrico que está ligada a este. Verificar se acontecem problemas de desarme freqüente de disjuntores ou outros dispositivos de proteção, neste caso deve-se investigar as causas e proceder a correta recomendação e manutenção corretiva. Não usar benjamins. Pois o uso simultâneo de mais de um aparelho na tomada poderá ultrapassar a potência prevista para a instalação elétrica daquele ponto. Quadros não podem ter fundo de madeira. Fios e cabos devem estar embutidos em bandejas, canaletas ou conduites lisos resistentes ao fogo. Cabos externos somente do tipo “PP” Não fazer derivações em tomadas. Não usar derivações com fio em paralelo. Não extensões com aumento de tomadas Partes vivas perigosas não devem ser acessíveis (caixas de passagem, emendas, soquetes, etc). Massas ou partes condutivas acessíveis não devem oferecer perigo, seja em condições normais, seja em particular, em caso de alguma falha que as tornem acidentalmente vivas. Devem ser tomadas precauções para impedir que pessoas ou animais toquem acidentalmente as partes vivas. Os pontos de tomada de uso específico devem ser localizados no máximo a 1,5m do ponto previsto para a localização do equipamento a ser alimentado. Elaborado por: Analisado por: Professor : Marcelo Gandra Falcone Alessandra Aparecida Vieira Marcelo Gandra Falcone QUANDO IMPRESSO CONSIDERAR PIRATARIA - CÓPIA NÃO AUTORIZADA
  • 115.
    UNINOVE Engenharia de Avaliaçõese Perícias Manutenção Predial e Avaliação de Máquinas e Equipamentos     Rev. B 16/07/2011 Folha 115/424 As linhas elétricas não devem ser dispostas nas proximidades de canalizações que produzam calor, fumaça ou vapores cujos efeitos podem ser prejudiciais à instalação. A menos que as linhas sejam protegidas contra esses efeitos, como, por exemplo, interpondo-se um anteparo adequado entre a linha elétrica e aquelas canalizações. Não se admitem linhas elétricas no interior de dutos de exaustão de fumaça ou de dutos de ventilação. Quando uma linha elétrica atravessar elementos da construção, tais como pisos, paredes, coberturas, tetos, etc. , as aberturas remanescentes à passagem da linha devem ser obturadas de modo a preservar a características de resistência ao fogo de que o elemento for dotado. Casos em que o uso de Dispositivo Diferencial DR – Residual de alta sensibilidade como proteção adicional é obrigatório: a) Os circuitos que sirvam a pontos de utilização situados em locais contendo banheira ou chuveiro; b) Os circuitos que alimentam tomadas de corrente situadas em área externas à edificação; c) Os circuitos de tomadas de corrente situadas em áreas internas que possam vir a alimentar equipamentos no exterior; d) Os circuitos que, em locais de habitação ou não residenciais, sirvam a pontos de utilização situados em cozinhas, copas-cozinhas, lavanderias, áreas de serviço, garagens e demais dependências internas molhadas em uso normal ou sujeitas a lavagens. e) Os circuitos que, em edificações não-residenciais, sirvam a pontos de tomada situados em cozinha, copas-cozinhas, lavanderias, áreas de serviço, garagens e, no geral, em áreas internas molhadas em uso normal ou sujeitas a lavagens. Recomendação Geral: A verificação completa das condições de preservação e de operação das instalações elétricas deve ser conforme descrito na norma NBR 5410. Recomendações e orientações técnicas Considerando as anomalias e falhas relacionadas a erros d cálculos, mau dimensionamento, defeitos nos materiais e equipamentos, falta de manutenção, ausência de treinamento para operação e outros, podemos citar as seguintes recomendações básicas: 1. Proteção contra contatos diretos, indiretos e choques A proteção contra contatos diretos e indiretos deve ser providenciada com barreiras, invólucros ou placas isolantes instaladas nos quadros elétricos, a fim de impedir que o usuário “toque” em partes da instalação energizadas. Elaborado por: Analisado por: Professor : Marcelo Gandra Falcone Alessandra Aparecida Vieira Marcelo Gandra Falcone QUANDO IMPRESSO CONSIDERAR PIRATARIA - CÓPIA NÃO AUTORIZADA
  • 116.
    UNINOVE Rev. B Engenharia deAvaliações e Perícias Manutenção Predial e Avaliação de Máquinas e Equipamentos 16/07/2011 Folha 116/424 Já a proteção contra choques em geral deverá ser efetuada com dispositivos de proteção à corrente diferencial residual (DR1 ou DR2), instalados nos circuitos elétricos, além de todas as partes metálicas não condutoras de corrente do quadro elétrico estarem aterradas. No caso de utilização de interruptores IDR, estes devem ser utilizados nos circuitos junto com dispositivo de sobrecorrente, ou seja, disjuntor ou fusível colocado antes do interruptor IDR. DR 1 – Disjunto Diferencial Residual. DR 2 – Interruptor Diferencial Residual. 2. Falta de aterramentos Com relação a aterramentos, é necessário que todas as instalações elétricas estejam aterradas, com destaque para as tomadas de uso especial, como, por exemplo, para ar condicionado, microondas, máquina de lavar roupa, chuveiros elétricos etc. As tampas dos quadros elétricos devem possuir cordoalha de aterramento entre essas tampas e o corpo do quadro. Ressalta-se que pontos de iluminação de áreas molhadas, como banheiros, também devem ter suas instalações aterradas. Importante frisar que os fios verdes existentes em diversos aparelhos elétricos devem ser ligados ao fio terra existente nos imóveis. Reforça-se que os aparelhos, chuveiros elétricos, torneiras elétricas e aquecedores de água devem ter resistência blindada e sempre devem estar aterrados, evitando correntes de fuga e desarmamentos indevidos do dispositivo diferencial DR. 3. Limpezas periódicas em quadros elétricos, dentre outros Os locais onde se encontram os quadros elétricos, quer os internos às unidades de consumo, quer os localizados no centro de medição, casa de bombas, casa de máquinas dos elevadores, devem se manter limpos e livres de objetos tais como: jornais, latas de tintas, papéis solventes, móveis. As portas e tampas dos mesmos não podem ficar obstruídas; esses locais também devem possuir iluminação artificial. Não permitir presença de materiais inflamáveis, materiais explosivos, poeiras em locais onde existam equipamentos elétricos em geral (quadros, cabos, bombas, motores). 4. Lembrar que, na ocorrência de incêndio em equipamento elétrico, utilizar extintor (gás carbônico, pó químico) – Classe C. Nunca usar água ou outro agente que a contenha em sua composição. Elaborado por: Analisado por: Professor : Marcelo Gandra Falcone Alessandra Aparecida Vieira Marcelo Gandra Falcone QUANDO IMPRESSO CONSIDERAR PIRATARIA - CÓPIA NÃO AUTORIZADA
  • 117.
    UNINOVE Rev. B Engenharia deAvaliações e Perícias Manutenção Predial e Avaliação de Máquinas e Equipamentos 16/07/2011 Folha 117/424 5. As conexões entre condutores e equipamentos por meio de terminais devem ser compatíveis, para se evitar efeito galvânico, evitando-se corrosões entre os materiais, o que provoca resistência, dificultando a passagem da corrente elétrica e consequentemente aquecimento indesejado. 6. Vistorias periódicas e termografia Providenciar vistorias periódicas nas instalações elétricas, no mínimo a cada dois anos, ou intervalos menores, por Engenheiro Eletricista habilitado e credenciado pelo CREA. Esse profissional irá constatar as anomalias e falhas, além de fornecer orientações observando as normas técnicas, bem como verificar questões relacionadas ao uso de equipamentos, aumento de potências elétricas etc. Para edificações com grande porte nas instalações elétricas, como edifícios de escritórios, shopping centers, igrejas etc., é importante a manutenção preditiva por meio de medições com aparelho de termografia, a fim de verificar aquecimentos em cabos e componentes dos quadros elétricos, por exemplo: contatores, disjuntores, fusíveis, com o intuito de ajustar rotinas de manutenção. 7. Não usar disjuntores de maior capacidade do que o cabo elétrico que está ligado a este. Caso aconteçam problemas de desarme freqüente de disjuntores ou outros dispositivos de proteção, deve-se contatar profissional habilitado para se investigar as causas e proceder à correta recomendação e manutenção corretiva. 8. Não usar benjamins, pois o uso simultâneo de mais de um aparelho na tomada poderá ultrapassar a potência prevista para a instalação elétrica daquele ponto. 9. Verificação completa por profissional habillitado das condições de preservação e de operação das instalações elétricas conforme descrito na norma ABNT NBR 5.410 – Instalações Elétricas de baixa Tensão – item Verificação e Manutenção, onde se podem avaliar as influências da qualidade dos componentes utilizados e da mão-de-obra que realizou a instalação, trazendo como resultado a possível garantia da segurança dos usuários da instalação e a eficiência energética do sistema. Figura 48 - Benjamin - IBAPE –SP, PUJADAS, F.Z.A.; GOMIDE, T.L.F.; FAGUNDES, J.C.P. e OUTROS, Inspeção Predial – Check-Up Predial: Guia da Boa Prevenção. São Paulo: Leud, 2009. Elaborado por: Analisado por: Professor : Marcelo Gandra Falcone Alessandra Aparecida Vieira Marcelo Gandra Falcone QUANDO IMPRESSO CONSIDERAR PIRATARIA - CÓPIA NÃO AUTORIZADA
  • 118.
    UNINOVE Rev. B Engenharia deAvaliações e Perícias Manutenção Predial e Avaliação de Máquinas e Equipamentos 16/07/2011 Folha 118/424 Curiosidades e dicas 1. Não manusear aparelhos elétricos e instalações elétricas quando houver contato com a água; pode provocar acidentes fatais. 2. Ao lidar com eletricidade, procurar usar calçados de sola de borracha grossa e inteiriça, evitando possíveis choques, nunca descalço. 3. Nunca segurar dois fios ao mesmo tempo. O contato simultâneo com os dois pode ocasionar passagem de corrente elétrica e uma possível parada cardíaca. 4. Quando tiver de lidar com as instalações elétricas, isolar sempre o fio que acabou de mexer antes de desencapar o outro. 5. Em caso de necessidade de corte de energia, sobretudo quando houver dúvida de qual é o disjuntor específico, desligar o disjuntor geral primeiro. 6. Parte da instalação não funciona:  Verificar no quadro de distribuição se o disjuntor daquele circuito não está desligado, em caso afirmativo, religá-lo;  Se ao religá-lo ele voltar a desarmar, solicite a assistência de um técnico habilitado, pois duas possibilidades ocorrem:  O disjuntor está com defeito e deverá ser substituído por outro;  Existe algum curto-circuito na instalação e será necessário reparo. 1. Disjuntor do quadro de distribuição desarmando com freqüência:  Verificar se existe algum mau contato elétrico (conexões frouxas), que é sempre fonte de calor, o que afeta a capacidade dos disjuntores; nesse caso, um simples reaperto nas conexões resolverá o problema;  Outra possibilidade é que o circuito esteja sobrecarregado com instalação de novas cargas, cujas características de potência são superiores às previstas no projeto. Tal fato deve ser rigorosamente evitado;  Verificar se existe algum aparelho conectado ao circuito em questão, com problema de isolamento ou mau contato, que possa causar fuga de corrente. 2. Superaquecimento do quadro de distribuição:  Verificar se existem conexões frouxas e reapertá-las.  Verificar se existe algum disjuntor com aquecimento acima do normal; isso pode ser provocado por mau contato interno do disjuntor, devendo o mesmo ser imediatamente desligado e substituído. 3. Chuveiro elétrico não esquenta a água:  Verificar se a chave de proteção no quadro de distribuição está desarmada, caso esteja, religá-la;  Persistindo o problema, verificar se não ocorreu a queima da resistência do chuveiro elétrico; se for o caso, substituí-la. Elaborado por: Analisado por: Professor : Marcelo Gandra Falcone Alessandra Aparecida Vieira Marcelo Gandra Falcone QUANDO IMPRESSO CONSIDERAR PIRATARIA - CÓPIA NÃO AUTORIZADA
  • 119.
    UNINOVE Rev. B Engenharia deAvaliações e Perícias Manutenção Predial e Avaliação de Máquinas e Equipamentos 16/07/2011 Folha 119/424 Perguntas mais freqüentes Posso ligar um aparelho de ar condicionado na minha resistência/apartamento? R.: Inicialmente, terá de ser verificada a potência elétrica do aparelho para definir o dimensionamento correto do circuito que irá alimentá-lo e a respectiva proteção. Verificar se os eletrodutos existentes comportam a enfiação. Não comportando, providenciar eletrodutos novos (aparentes ou embutidos). Verificar também se o ramal alimentador do quadro de proteção comporta o aumento de carga. È importante lembrar que, no caso de edifício, a instalação de vários aparelhos pode comprometer a entrada de energia, devendo-se efetuar estudos específicos, pois a demanda para aparelhos de ar condicionado é alta, citando como exemplo: entre 11 e 20 aparelhos instalados, a demanda considerada é de 90%.   Para que serve um DR ou IDR? Qual a diferença? R.: É um dispositivo que protege as pessoas contra choques elétricos provocados por contatos diretos e indiretos. DR (Disjuntor Diferencial Residual) é um dispositivo que protege os fios do circuito contra sobrecarga e curtocircuito e as pessoas contra choques elétricos. IDR (interruptor Diferencial Residual) é um dispositivo que liga e desliga manualmente o circuito e protege as pessoas contra choques elétricos.  Por que o meu ferro elétrico queimou quando o liguei em outra tomada? R.: O ferro elétrico contém em seu interior um elemento chamado resistência elétrica, que é expressa em ohm (Ω). Geralmente, o ferro elétrico convencional é ligado em 110 V. A corrente que atravessa a resistência elétrica é proporcional à tensão aplicada. Assim, quando se dobra a tensão (caso de ligar em uma tomada de 220 V), dobra-se a corrente, provocando a queima da resistência.  Por que o disjuntor do quadro está sempre desligando? R.: Provavelmente devido à sobrecarga, o mesmo se aquece e após um tempo atua o dispositivo térmico do disjuntor, provocando o desligamento.  Como instalar mais carga na minha residência? R.: Inicialmente, deve-se efetuar o levantamento das cargas existentes e acrescentar as novas cargas pretendidas, verificando pela corrente de demanda calculada se os condutores existentes do ramal alimentador suportam, como também os dispositivos de proteção (disjuntores ou fusíveis). Elaborado por: Analisado por: Professor : Marcelo Gandra Falcone Alessandra Aparecida Vieira Marcelo Gandra Falcone QUANDO IMPRESSO CONSIDERAR PIRATARIA - CÓPIA NÃO AUTORIZADA
  • 120.
    UNINOVE Rev. B Engenharia deAvaliações e Perícias Manutenção Predial e Avaliação de Máquinas e Equipamentos 16/07/2011 Folha 120/424 9.6.3 Sistema de Proteção Contra Descargas Atmosféricas: O raio é responsável pelos grandes prejuízos que provoca quando atinge edifícios, residências, animais, pessoas, redes elétricas, podendo causar mortes, incêndios, destruição de materiais, como também falhas e danos em sistemas de eletricidade e de telecomunicações. No caso de edificações, sua proteção deve ser atendida obedecendo a critérios em função do tipo de prédio, tipo de ocupação, tipo do material de construção utilizado e localização, permitindo, assim, orientar como deve ser instalado o para-raios. Geralmente, o sistema é constituído por cabos e anéis de cobre, que correm fixados junto ao perímetro da edificação, em seus pontos mais altos, junto às muretas das lajes de coberturas e telhados. Esses cabos estão interligados com as armações dos pilares de concreto da estrutura da edificação ou em descidas externas junto às fachadas. Esses anéis também estão interligados com hastes tipo Franklin, além das estruturas metálicas das antenas, escadas metálicas, telhas metálicas, rufos, dentre outros elementos metálicos que existirem nas coberturas das edificações. É importante que o sistema possua terminais aéreos nos cantos das bordas dos perímetros das lajes de cobertura ou telhados. O pára-raios deve estar no ponto mais alto do edifício. Massas metálicas como torres, antenas, guarda-corpos e painéis de propaganda e sinalização devem ser ligadas aos cabos de descida do pára-raios, integrando o sistema de proteção contra descargas elétricas atmosféricas. O pára-raios deve estar funcionando adequadamente. Caso contrário, há inversão da descarga para as massas metálicas que estiverem em contato com seu cabo. Os pára-raios podem ser do tipo FRANKLIN ou GAIOLA DE FARADAY. O tipo radioativo/iônico tem sua instalação condenada devido à sua carga radioativa e por não ter eficiência adequada. A manutenção dos pára-raios deve ser feita anualmente, por empresas especializadas, conforme instrução do fabricante. É preciso observar a resistência ôhmica do aterramento entre eletrodos e a terra (máximo de 10 ohm) ou logo após a queda do raio. Elaborado por: Analisado por: Professor : Marcelo Gandra Falcone Alessandra Aparecida Vieira Marcelo Gandra Falcone QUANDO IMPRESSO CONSIDERAR PIRATARIA - CÓPIA NÃO AUTORIZADA
  • 121.
    UNINOVE Rev. B Engenharia deAvaliações e Perícias Manutenção Predial e Avaliação de Máquinas e Equipamentos 16/07/2011 Folha 121/424 Figura 49 – Tipo de para raios – Cartilha do CONTRU em SCI As descidas dos sistemas de para-raios nos edifícios mais novos são feitas por meio de ferro específico, existente junto às armaduras dos pilares da estrutura, os quais são interligados com as ferragens das fundações. Nos mais antigos, as descidas são externas, correndo por suportes ou fixadas nas fachadas. As caixas de inspeção onde se localizam hastes de aterramento, utilizadas para inspeções e para a medição da resistência de aterramento, estão localizadas nos subsolos dos edifícios ou no pavimento térreo, para aqueles que não possuem subsolos. O sistema de aterramento das instalações elétricas gerais da edificação está ligado ao sistema de descargas atmosféricas (SPDA) por meio de uma barra de cobre, próxima à caixa de distribuição de entrada de energia A inspeção deverá ser restrita às verificações visuais de proteções, cabos, dentre outros componentes: entrada de energia; subestação principal; ramais principais (saídas dos transformadores); subestações unitárias; quadros gerais de distribuição em baixa tensão e quadros terminais; circuitos em geral; aparelhos em geral, motores; iluminação do estádio; iluminação de emergência; SPDA – Sistema de Proteção contra Descargas Atmosféricas Deve ser considerada a tipologia de construção, os sistemas de proteção atmosférica e aterramento, bem como as características das instalações, levando-se em consideração os seguintes aspectos: confiabilidade do sistema instalado; segurança do sistema instalado e periculosidade. Cabe informar que o sistema de proteção dos edifícios contra a incidência de raios não impede a ocorrência das descargas atmosféricas, entretanto, reduz de modo bastante significativo os riscos decorrentes das descargas. Elaborado por: Analisado por: Professor : Marcelo Gandra Falcone Alessandra Aparecida Vieira Marcelo Gandra Falcone QUANDO IMPRESSO CONSIDERAR PIRATARIA - CÓPIA NÃO AUTORIZADA
  • 122.
    UNINOVE Rev. B Engenharia deAvaliações e Perícias Manutenção Predial e Avaliação de Máquinas e Equipamentos 16/07/2011 Folha 122/424 Os raios são responsáveis por danos físicos e incêndios, de tal forma que os edifícios devem estar protegidos contra essas descargas diretas, tanto na cobertura como nas laterais. O sistema de proteção contra descargas atmosféricas (SPDA) tem por finalidade proteger a edificação e seus usuários contra a descarga de raios, que causam: sobretensões quando atingem redes de energia elétrica e de telefonia; sobretensões quando atingem antenas coletivas e outras nas coberturas; choques quando atingem as partes metálicas diversas, como telhas, rufos etc.; além de evitar o encaminhamento dos raios por outras partes das instalações elétricas que possam causar danos físicos e materiais aos usuários da edificação. Sendo assim, o principal objetivo da proteção contra as descargas atmosféricas é estabelecer meios para que as descargas se dirijam para a terra pelo menor percurso possível, por intermédio das descidas constituídas por materiais condutores. Figura 50 – SPDA - IBAPE –SP, PUJADAS, F.Z.A.; GOMIDE, T.L.F.; FAGUNDES, J.C.P. e OUTROS, Inspeção Predial – Check-Up Predial: Guia da Boa Prevenção. São Paulo: Leud, 2009. Principais anomalias e falhas Além das anomalias relacionadas a problemas de projeto, como deficiências do dimensionamento do sistema, equívocos de instalação e execução, bem como uso de materiais com defeitos, existem falhas que podem ter sua origem relacionada a questões de uso operação e manutenção, Elaborado por: Analisado por: Professor : Marcelo Gandra Falcone Alessandra Aparecida Vieira Marcelo Gandra Falcone QUANDO IMPRESSO CONSIDERAR PIRATARIA - CÓPIA NÃO AUTORIZADA
  • 123.
    UNINOVE Rev. B Engenharia deAvaliações e Perícias Manutenção Predial e Avaliação de Máquinas e Equipamentos 16/07/2011 Folha 123/424 devendo ser observadas dentro das rotinas e vistorias periódicas. Dentre essas, pode-se citar: 1. Deficiências de equipotencialidade com a falta do terminal de aterramento principal, constituído por uma barra de cobre que reúne, por meio de conexões, condutores de proteção do sistema elétrico principal, condutores principais ligados a canalizações metálicas, estruturas metálicas, sistema SPDA. A falta de interligação das estruturas metálicas, em geral instaladas nas coberturas e telhados das edificações, tais como: escadas, antenas, rufos, telhas metálicas, dentre outras, provoca descontinuidades elétricas no sistema quando da descarga de raios nesses locais não interligados. Observa-se que é comum se constatar antenas diversas, instaladas durante a vida útil da edificação, de tal forma que essas não estão ligadas aos cabos e anéis do SPDA, não garantindo a equipotencialidade do sistema. Nessa situação, em caso de descarga nessas antenas, haverá danos nos aparelhos televisores ligados a essa instalação. Além das questões de falta de interligação de partes metálicas ao sistema SPDA, existem outros fatores, tais como: condutores com suas fixações soltas e corrosões galvânicas em seus componentes. As corrosões galvânicas podem ocorrer entre condutores e conexões, bem como entre condutores e descidas, ou ainda em outros trechos na ligação de partes metálicas com o sistema, quando não são observadas as condições de eletronegatividade de metais, por exemplo: devem-se utilizar conexões especiais quando se liga um elemento de alumínio ao cabo de cobre ou um elemento de ferro ao cabo de cobre. Portanto, observar os tipos de metais envolvidos e ligados junto ao SPDA para garantir o seu bom desempenho e conservação. A continuidade elétrica também pode ser comprometida em função de rompimentos nas descidas entre as conexões e o anel captor. Esse rompimento de cabos pode se dar devido à execução de outros serviços, como, por exemplo: limpeza de caixa d’água, manutenção em antenas, apoio para balancins etc., interferindo nos cabos e conexões do SPDA. A corrosão junto às conexões do cabo de descida na malha terra, dentro das caixas de inspeção, é outra anomalia que põe em risco a continuidade elétrica. Elaborado por: Analisado por: Professor : Marcelo Gandra Falcone Alessandra Aparecida Vieira Marcelo Gandra Falcone QUANDO IMPRESSO CONSIDERAR PIRATARIA - CÓPIA NÃO AUTORIZADA
  • 124.
    UNINOVE Rev. B Engenharia deAvaliações e Perícias Manutenção Predial e Avaliação de Máquinas e Equipamentos 16/07/2011 Folha 124/424 2. Instalação de descidas agrupadas, geralmente em edifícios mais antigos, lembrando que as descidas devem ser executadas a cada 20 m (vinte metros) de perímetro. Para não ferir a estética do prédio, podem-se usar barras chatas fixadas na superfície no lugar dos cabos do cobre que passa pelos suportes com roldanas, tanto na cobertura quanto nas descidas. Observa-se, por fim, que a ABNT NBR 5.419 – Sistemas de proteção contra Descargas Atmosféricas, prevê teste de continuidade elétrica, dentre outros, a fim de verificar constantemente esses problemas mencionados. 3. Falta de proteção das descidas externas junto às fachadas As descidas externas junto ao piso a certa altura devem ser protegidas por meio de alvenarias ou eletrodutos, a fim de impossibilitar impactos indesejáveis e conseqüentes problemas de ruptura dos cabos e anéis, além de arrancamentos de hastes de fixação. 4. Fixação de hastes nas coberturas Toda e qualquer fixação nas lajes de cobertura, incluindo as hastes de pararaios Franklin, devem ser feitas sobre bases e nunca diretamente apoiadas sobre as mesmas, podendo comprometer ou danificar outros sistemas, tais como: sistema de impermeabilização. 5. Disparidades na medição da resistência ôhmica junto às hastes nas caixas de inspeção Quando há discrepâncias nos valores das medições ôhmicas, realizadas por empresas terceirizadas, deve-se investigar as causas, podendo existir problemas relacionados à continuidade elétrica do sistema, soltura de conexões entre cabos e hastes, ruptura de soldas exotérmicas, abertura de malha terra, dentre outros. Observa-se que esse teste de continuidade citado, bem como a medição ôhmica, deve ser realizado por empresa especializada, com engenheiro elétrico responsável, e a cada cinco anos. Na cidade de São Paulo, anualmente, é exigido pela municipalidade um relatório de inspeção do sistema, acompanhado de recolhimento de ART (anotação de Responsabilidade Técnica, emitida pelo CREA) pelo profissional responsável. 6. Outras anomalias envolvendo questões de origem externa:   Queda da haste Franklin e de antenas devido a ventanias. Comprometimento do sistema com corrosões e rompimentos do condutor ou cantos da cobertura devido à incidência de raio. Elaborado por: Analisado por: Professor : Marcelo Gandra Falcone Alessandra Aparecida Vieira Marcelo Gandra Falcone QUANDO IMPRESSO CONSIDERAR PIRATARIA - CÓPIA NÃO AUTORIZADA
  • 125.
    UNINOVE Engenharia de Avaliaçõese Perícias Manutenção Predial e Avaliação de Máquinas e Equipamentos   Rev. B 16/07/2011 Folha 125/424 Outros tipos de corrosões em cabos, conexões, hastes etc. devido a chuvas ou ar externo agressivo. Modificações ou alterações executadas em telhados ou coberturas com comprometimento do sistema ou falta de adequações, ocorrendo rompimentos de cabos, desvios inadequados, hastes malfixadas etc., comprometendo a continuidade elétrica e a equipotencialidade do SPDA Itens de Inspeção:      De acordo com o Item 9.C.4 do Decreto 32.329/92 , as edificações com altura superior a 12,00m (doze metros) deverão dispor de sistema de proteção contra descargas atmosféricas, executado de acordo com a NTO NBR 5419/2001, não podendo ser utilizado captor iônico-radioativo nas instalações. Os condutores de descida não naturais devem ser instalados a uma distância mínima de 0,50 m de portas, janelas e outras aberturas e fixados a cada metro de percurso. Os cabos de descida devem ser protegidos contra danos mecânicos até, no mínimo 2,5 m acima do nível do solo. A proteção deve ser por eletroduto rígido PVC ou metálico sendo que, neste último caso, o cabo de descida deve ser conectado às extremidades superior e inferior do eletroduto. Tubulações de gás deverão distar em no mínimo 2 m (dois metros) das descidas dos condutores de aterramento dos para-raios. Uma inspeção visual do SPDA deve ser efetuada anualmente. Inspeções completas devem ser efetuadas periodicamente, em intervalos de: a) 5 anos para estruturas destinadas a fins residenciais, comerciais, administrativos, agrícolas ou industriais, excetuando-se áreas classificadas com risco de incêndio ou explosão; b) 3 anos para estruturas destinadas a grandes concentrações públicas ( por exemplo: hospitais, escolas, teatros, cinemas, estádios de esporte, centros comerciais e pavilhões), indústrias contendo áreas com risco de explosão, conforme a NBR 9518, e depósitos de material inflamável; c) 1 ano, para estruturas contendo munição ou explosivos, ou em locais expostos à corrosão atmosférica severa (regiões litorâneas, ambientes industriais com atmosfera agressiva, etc.) Recomendações e orientações técnicas De acordo com as anomalias e falhas já mencionadas, recomenda-se que quaisquer sejam as manutenções ou adequações a serem feitas no sistema de para-raios, essas deverão ser executadas por empresa especializada, tendo em vista as questões técnicas envolvidas. De qualquer forma, seguem tópicos orientativos: Elaborado por: Analisado por: Professor : Marcelo Gandra Falcone Alessandra Aparecida Vieira Marcelo Gandra Falcone QUANDO IMPRESSO CONSIDERAR PIRATARIA - CÓPIA NÃO AUTORIZADA
  • 126.
    UNINOVE Rev. B Engenharia deAvaliações e Perícias Manutenção Predial e Avaliação de Máquinas e Equipamentos 16/07/2011 Folha 126/424 1. Manter cabos, anéis, hastes e roldanas sempre bem fixados, a fim de não comprometer a continuidade elétrica. 2. Sempre ligar ao sistema as estruturas metálicas existentes nas coberturas e telhados, respeitando os tipo de metais, utilizando as devidas conexões, a fim de não provocar danos à equipotencialidade do sistema e sua continuidade elétrica. 3. Fazer as inspeções periódicas a cada ano e as completas, envolvendo teste de continuidade e medições ôhmicas, a cada cinco anos Curiosidades e dicas 1. O que é raio ou descarga elétrica? R.: O raio pode ser considerado um fenômeno elétrico, resultante do acúmulo de cargas elétricas em uma nuvem e a conseqüente descarga elétrica sobre a terra ou sobre qualquer estrutura que ofereça condições favoráveis à descarga. 2. Os raios caem nos pontos mais altos? R.: Em pontos mais elevados a probabilidade de um raio cair é maior do que nos locais mais baixos. 3. Existe alvo preferido pelos raios? Como se comporta a corrente? R.: Em edificações, os raios preferem os cantos. Quando o raio cai em um canto, aproximadamente 50% da corrente vai para a terra por meio do condutor de descida do canto. 4. Qual é a área que os para-raios protegem? R.: O tipo Franklin dá uma proteção em um cone cuja base é um círculo, sendo o raio do círculo função da altura em que está instalado o para-raio. O tipo gaiola de Faraday consiste na teoria de que o campo no interior da gaiola é nulo. Entretanto, para o campo ser nulo é necessário que a corrente se distribua uniformemente por toda a superfície. Lembrando que a malha mais importante é a que percorre toda a periferia da cobertura e a periferia da casa de máquinas e caixa d’água. Sempre que possível, instalar descidas em cada canto do edifício, e outras quando houver, espaçadas regularmente. 5. Durante uma tempestade o que devemos fazer? R.: Na cidade, evitar contato com objetos metálicos de grande porte, canos, torneiras, não ficar descalço, evitar tocar aparelhos eletrodomésticos. No campo, não ficar embaixo de árvores, não tocar em cercas. Elaborado por: Analisado por: Professor : Marcelo Gandra Falcone Alessandra Aparecida Vieira Marcelo Gandra Falcone QUANDO IMPRESSO CONSIDERAR PIRATARIA - CÓPIA NÃO AUTORIZADA
  • 127.
    UNINOVE Rev. B Engenharia deAvaliações e Perícias Manutenção Predial e Avaliação de Máquinas e Equipamentos 16/07/2011 Folha 127/424 9.7 Sistema Hidráulico 9.7.1 Descrição e finalidade do sistema As edificações são guarnecidas de instalações hidráulicas que têm a finalidade de garantir a habitabilidade do usuário, no que tange a higiene, asseio, limpeza e conforto. As instalações hidráulicas são compostas por um conjunto de tubulações e equipamentos, aparentes ou embutidos, destinado ao transporte e controle de fluxo de água, esgoto e demais fluídos em uma edificação, conforme projeto elaborado de acordo com as normas técnicas da ABNT vigentes. Este capitulo foi escrito baseado na Norma NBR 5626/98 NBR 05626 - 1998 - Instalação predial de água fria. Os sistemas que compõem as instalações hidráulicas são:       Água fria; Água quente; Esgoto; Águas pluviais; Sistema de combate a incêndio; Gás. Abaixo seguem as descrições resumidas e básicas dos sistemas citados. 1 Sistema de instalações hidráulicas prediais de água fria Tem sua origem, normalmente, no abastecimento de água por uma empresa concessionária de serviços públicos. Em alguns casos específicos, poderá haver abastecimento total ou parcial de água por meio de captação de águas profundas pela instalação e licença de operação de poços artesianos. Os componentes usuais do sistema de água fria são: hidrômetro, bombas de recalque, tubulações, registros, válvulas e reservatórios. A água entra para a edificação passando por um hidrômetro, o qual registra a quantidade ou volume de água consumida, dirigindo-se pelas tubulações para os reservatórios inferiores, que podem ser do tipo cisternas (enterrados) ou não. Em edificações térreas ou de poucos pavimentos, podem não existir reservatórios inferiores, sendo que a pressão de água fornecida pela concessionária é suficiente para que a água chegue a reservatórios elevados ou superiores. Nas edificações com vários pavimentos, a água é armazenada em um reservatório inferior, portanto, é bombeada por meio de bombas de recalque para o reservatório superior. Elaborado por: Analisado por: Professor : Marcelo Gandra Falcone Alessandra Aparecida Vieira Marcelo Gandra Falcone QUANDO IMPRESSO CONSIDERAR PIRATARIA - CÓPIA NÃO AUTORIZADA
  • 128.
    UNINOVE Rev. B Engenharia deAvaliações e Perícias Manutenção Predial e Avaliação de Máquinas e Equipamentos 16/07/2011 Folha 128/424 A água que sai do reservatório superior, antes de se dirigir às tubulações específicas de cada prumada da edificação, passa por um ambiente técnico de manobras e direcionamentos, que é chamado de barrilete. No barrilete existem vários registros de água fria que comandam o fornecimento de água para as diversas prumadas da edificação, sendo que, em casos de manutenções específicas, fecha-se o registro da respectiva prumada. Desse modo, a água desce pelas prumadas de água fria para cada andar, onde são distribuídas pelos ramais de água fria, chegando nos pontos de consumo, tais como: torneiras (pia, lavatórios e tanque), válvulas ou caixas de descarga, chuveiros etc. As tubulações de água fria, quando aparentes, são identificadas pela cor verde emblema. Salienta-se que, para edificações cuja pressão estática ultrapassar 40 m de coluna d’água (40 mca), ou seja, quando a distância entre o reservatório e o ponto de consumo for maior do que 40 m de altura, é recomendada a instalação de válvula redutora de pressão nas respectivas tubulações. Nas edificações mais antigas, costumava-se construir reservatórios intermediários, diminuindo as pressões estáticas nas tubulações. Outro fator importante nas instalações hidráulicas de água fria é que o fechamento de qualquer peça de utilização (torneiras, válvulas de descarga etc.) não poderá causar sobrepressões, em qualquer ponto da instalação, maiores que 20 mca acima da pressão estática nesse mesmo ponto. Isso quer dizer que a pressão de serviço não pode ultrapassar 60 mca em qualquer ponto da instalação quando do fechamento de qualquer dispositivo. Em casos contrários, ocorre o fenômeno hidrálico conhecido como Golpe de Aríete, causando rompimentos, vazamentos e ruídos indesejáveis às instalações, além de haver desgastes excessivos nos materiais utilizados. Evidentemente, esse é um fator a ser previsto em projeto. Observa-se, no entanto, que, em edifícios comerciais ou não, quando se trocam as torneiras de acionamento manual por aquelas de acionamento automático, dependendo do número de pontos de consumo, poderá causar o fenômeno citado, devendo sempre ser consultado um especialista para a mudança de usos ou substituições de peças. 2. Sistema de instalações hidráulicas prediais de água quente O sistema de água quente se origina em equipamentos de aquecimento de água, que podem ser do tipo: caldeiras, aquecedores de passagem e aquecedores de acumulação. Esses equipamentos poderão, ainda, ser elétricos, solares ou a gás. Essa central de produção de água quente ainda poderá ser central ou individual, dependendo do tipo de edificação, de suas características e partidos de projeto. Elaborado por: Analisado por: Professor : Marcelo Gandra Falcone Alessandra Aparecida Vieira Marcelo Gandra Falcone QUANDO IMPRESSO CONSIDERAR PIRATARIA - CÓPIA NÃO AUTORIZADA
  • 129.
    UNINOVE Rev. B Engenharia deAvaliações e Perícias Manutenção Predial e Avaliação de Máquinas e Equipamentos 16/07/2011 Folha 129/424 Após o aquecimento da água fria nesses equipamentos, esta segue por tubulações, registros e válvulas, geralmente em cobre, isoladas termicamente dos demais sistemas da construção, até os pontos de consumo. Quando o aquecimento é central, também existe local específico para o comando geral de prumadas de água quente, podendo ou estar junto dos de água fria já citados. Quando o aquecimento é individual, ou seja, por meio de equipamentos instalados dentro de cada unidade privativa da edificação, a alimentação de água fria desses aquecedores se dá por meio de prumada específica, independente das outras prumadas de abastecimento de água fria da unidade. As tubulações de água quente, quando aparentes, são identificadas na cor branca. 3. Sistema de proteção de incêndio Esse sistema é abastecido pela reserva de água situada na parte inferior do reservatório superior, destinada para essa finalidade consoante aspectos de projeto e atendimento legais. A distribuição é feita pela prumada de incêndio, identificada na cor vermelha. Tais prumadas alimentam os hidrantes e sprinklers, onde nos andares superiores pode haver a necessidade de instalação de uma bomba de incêndio que garanta uma pressão de saída no bocal do hidrante, sendo esta de 15 m coluna d’água (15 mca). As bombas são acionadas comumente por botoeiras, podendo também ser acionadas automaticamente. O sistema segue até um registro situado dentro de uma caixa embutida na calçada defronte à edificação para uso exclusivo do Corpo de Bombeiros em caso de incêndio. 4. Sistema de águas pluviais e esgoto sanitário doméstico No sistema de águas pluviais, as águas de chuva coletadas das jardineiras, telhados, lajes de cobertura, captadas por meio de calhas, ralos ou grelhas, seguem pelos condutores verticais e horizontais (tubulações) até serem despejadas em caixas de coleta e passagem para posterior ligação junto à rede pública. Conforme a cota topográfica onde está localizado o imóvel, pode haver sistema de bombeamento das águas pluviais coletadas para a rede pública. Em casos de nível de lençol freático alto, com drenagens profundas instaladas para a captação dessas águas provenientes do solo, essa rede de drenagem deve-se interligar ao sistema de águas pluviais da edificação, caso não haja seu reaproveitamento. Para o reaproveitamento de águas pluviais e/ou de drenagem de lençol freático, é importante destacar que haverá instalações específicas para o Elaborado por: Analisado por: Professor : Marcelo Gandra Falcone Alessandra Aparecida Vieira Marcelo Gandra Falcone QUANDO IMPRESSO CONSIDERAR PIRATARIA - CÓPIA NÃO AUTORIZADA
  • 130.
    UNINOVE Rev. B Engenharia deAvaliações e Perícias Manutenção Predial e Avaliação de Máquinas e Equipamentos 16/07/2011 Folha 130/424 armazenamento dessa água, além de tratamento químicos próprios a fim de conferir padrões de potabilidade. Figura 51 – Principiuos de Drenagem - IBAPE –SP, PUJADAS, F.Z.A.; GOMIDE, T.L.F.; FAGUNDES, J.C.P. e OUTROS, Inspeção Predial –Check-Up Predial: Guia da Boa Prevenção. São Paulo: Leud, 2009. Para outros usos, não-relacionados ao consumo humano, deve-se elaborar estudos específicos a fim de verificar viabilidades. Por fim, cabe ressaltar que o sistema de águas pluviais da edificação se destina unicamente à captação e condução das águas originárias de chuvas. Portanto, cabe consignar aqui a definição de esgoto sanitário da ABNT NBR 8.160 – Instalação Predial de esgoto sanitário: “Esgoto sanitário: são os despejos provenientes do uso da água para fins higiênicos.” Logo, águas provenientes da lavagem de pisos externos ou internos são consideradas como esgoto, e suas tubulações não devem estar ligadas às de coleta ou condução de águas pluviais. O sistema de esgotos sanitários é aquele que coleta e conduz toda a água utilizada para fins higiênicos de uma edificação. Esse esgoto é captado por meio de vasos sanitários, bidês, ralos de chuveiros, ralos diversos, lavatórios etc. Essas tubulações são denominadas ramais de descarga e ramais de esgoto. Os ramais de descarga são aqueles que captam o esgoto nos aparelhos e ligam-se ao ralo sifonado, com exceção dos ramais de descarga dos vasos sanitários, que se ligam diretamente às prumadas de esgoto, chamadas tubos de queda. Importante observar que há necessidade de ventilação, ou seja, a instalação de tubulação de ventilação nos ramais de esgoto que saem dos ralos sifonados para se unirem aos outros ramais de esgoto originários das bacias sanitárias, antes das ligações junto às prumadas ou tubos de queda. Essa ventilação faz com que não haja retorno de odores para o ralo e demais aparelhos sanitários, Elaborado por: Analisado por: Professor : Marcelo Gandra Falcone Alessandra Aparecida Vieira Marcelo Gandra Falcone QUANDO IMPRESSO CONSIDERAR PIRATARIA - CÓPIA NÃO AUTORIZADA
  • 131.
    UNINOVE Rev. B Engenharia deAvaliações e Perícias Manutenção Predial e Avaliação de Máquinas e Equipamentos 16/07/2011 Folha 131/424 além de promover a estabilidade hídrica do ralo, quando as descargas das bacias são acionadas. Segue ilustração básica da instalação hidráulica descrita. Figura 52 – Ramais de esgoto - IBAPE –SP, PUJADAS, F.Z.A.; GOMIDE, T.L.F.; FAGUNDES, J.C.P. e OUTROS, Inspeção Predial –Check-Up Predial: Guia da Boa Prevenção. São Paulo: Leud, 2009. Evidentemente, essas características e distribuições devem ser previstas em projeto, porém, em muitos edifícios, ou em unidades que são reformadas por seus proprietários, a ventilação do ramal de esgoto não é observada, o que gera transtornos desagradáveis como mau cheiro nos banheiros, lavabos etc. O esgoto conduzido pelos ramais de esgoto é ligado à instalação independente e segue pelos coletores até a caixa de esgoto, situada geralmente no pavimento térreo, e daí despeja na rede pública de esgoto. Nos casos em que o esgoto chega num nível abaixo da rede coletora, são projetadas bombas de recalque próprias para carrear resíduos sólidos e líquidos para a rede pública. As tubulações de pluviais e de esgoto devem ser distintas e, quando aparentes, devem ser identificadas em corres diferentes, emprega-se, normalmente, a cor marrom para as tubulações de águas pluviais e preta para as tubulações de esgoto. 9.7.2 Principais anomalias e falhas As anomalias e falhas mais comuns constatadas nos três sistemas hidráulicos abordados são: 1. Corrosão de tubulações hidráulicas em ferro galvanizado Elaborado por: Analisado por: Professor : Marcelo Gandra Falcone Alessandra Aparecida Vieira Marcelo Gandra Falcone QUANDO IMPRESSO CONSIDERAR PIRATARIA - CÓPIA NÃO AUTORIZADA
  • 132.
    UNINOVE Rev. B Engenharia deAvaliações e Perícias Manutenção Predial e Avaliação de Máquinas e Equipamentos 16/07/2011 Folha 132/424 As corrosões nas tubulações em ferro galvanizado podem ser internas e/ou externas, localizadas (por pite), generalizadas ou por erosão. As tubulações em ferro galvanizado, que foram largamente empregadas em edificações com mais de 25 anos, e ainda hoje são empregadas principalmente em tubulações de águas pluviais e esgoto nas edificações, têm uma vida útil estimada de, aproximadamente, 10 a 15 anos. As corrosões externas se dão pelo desgaste da camada de galvanização. Esse desgaste pode ter causa originária na suplantação da idade útil da tubulação, falta de manutenção dos acabamentos de pintura que protegem a camada de galvanização contra agentes de deterioração, além de abrasões devido a procedimentos equivocados de limpeza ou mesmo impactos. Já as corrosões internas, responsáveis por perda de seção da tubulação, além de diminuição da seção de trabalho dos tubos, causando perdas de vazão e aumentos de pressão, são causadas pela ação do próprio fluído, sendo: esgotos, águas pluviais e água potável. Cabe destacar que nos esgotos existem compostos químicos agressivos, resultado de produtos de limpeza ou da própria constituição do esgoto, envolvendo produtos com base ácida (cloretos, por exemplo), ou de poder incrustante. Já as águas pluviais, principalmente em ambientes urbanos, possuem constituição de pH ácidos e as águas potáveis têm em sua composição adição de cloro, a fim de manter padrões de potabilidade. Além das possíveis composições que possam ter os fluídos, a própria ação do escoamento interno desce junto às paredes das tubulações e provoca os desgastes entendidos como naturais. De qualquer forma, a corrosão interna de tubulações pode ser verificada pela simples observação da tonalidade das águas que saem pelas torneiras, ou ainda, pela execução de teste com aparelhos de ultrassom, a fim de verificar as espessuras de tubos, constituindo um procedimento de manutenção preditiva. Evidentemente, quando a corrosão interna está instalada, ocorrem os vazamentos. 2. Deformações em tubulações em PVC È comum observar deformações excessivas em trechos longos de tubos de PVC, instalados junto aos tetos de subsolos, devido à falta da fixação adequada com fitas metálicas em trechos curtos. Elaborado por: Analisado por: Professor : Marcelo Gandra Falcone Alessandra Aparecida Vieira Marcelo Gandra Falcone QUANDO IMPRESSO CONSIDERAR PIRATARIA - CÓPIA NÃO AUTORIZADA
  • 133.
    UNINOVE Rev. B Engenharia deAvaliações e Perícias Manutenção Predial e Avaliação de Máquinas e Equipamentos 16/07/2011 Folha 133/424 Além dessas deformações devido à má fixação dos tubos, há também a ação dos raios ultravioleta e do calor sobre tubos aparentes em locais externos. É recomendável que todas as tubulações em PVC estejam enterradas, envelopadas, pintadas, a fim de ter essa proteção contra a ação solar, além de impactos, o que pode provocar rupturas e vazamentos, além das deformações. Em tubulações plásticas, como é o caso das de PVC, podem ocorrer fadigas devido à existência de sobrepressões, como em tubulações de recalque. Nesse caso, em projeto há de se prever dispositivos “amortecedores” desses esforços, a fim de garantir melhor desempenho e maior vida útil das tubulações. Assim como as corrosões, as deformações excessivas causam vazamentos e rupturas de tubo. 3. Vazamentos diversos em tubulações Os vazamentos nas instalações hidráulicas podem ter suas causas relacionadas a inúmeras coisas, incluindo as dos itens já mencionados. Por questões práticas, seguem algumas das mais freqüentes causas observadas em edificações:  Subdimensionamento de coletores de águas pluviais, incorrendo em transbordamentos de calhas, alagamentos, empoçamentos etc.;  Falha na execução dos acoplamentos entre calhas, ralos ou grelhas e o seu condutor, incorrendo em vazamentos junto às tubulações de águas pluviais;  Falta de limpeza de ralos, calhas, grelhas, lajes de cobertura, causando entupimentos de coletores de águas pluviais, bem como falta de limpeza nas próprias caixas de passagem, localizadas em subsolos ou térreos, causando a obstrução dos condutores (trechos horizontais da tubulação);  Falha na execução de soldas nos encaixes das conexões;  Vibrações internas das tubulações causadas pela pressão da água, podendo provocar ruptura;  Uso de materiais diferentes e impróprios em reparos nas tubulações hidráulicas, como resinas base epóxi (tipo durepóxi), para o “conserto” de trincas em tubos ou “reforços” em emendas;  Emendas em trechos que foram substituídos com tubos de materiais diferentes, que possuem características e coeficientes de dilatação diferentes como, por exemplo: emendas entre PVC e ferro galvanizado;  Descargas de água quente, com temperaturas acima de 50º C em tubulações de esgoto de PVC; Elaborado por: Analisado por: Professor : Marcelo Gandra Falcone Alessandra Aparecida Vieira Marcelo Gandra Falcone QUANDO IMPRESSO CONSIDERAR PIRATARIA - CÓPIA NÃO AUTORIZADA
  • 134.
    UNINOVE Rev. B Engenharia deAvaliações e Perícias Manutenção Predial e Avaliação de Máquinas e Equipamentos 16/07/2011  Uso de instrumentos pontiagudos para desentupimento de tubulações, incorrendo na ruptura do tubo. Folha 134/424 proceder ao 4. Deterioração das tampas de reservatórios de água Em diversas edificações, as tampas dos reservatórios de água não atendem aos requisitos mínimos determinados na ABNT NBR 5.626 – Instalações Prediais de Água Fria. Segundo essa norma, os reservatórios devem ser estanques, com tampa ou porta de acesso, firmemente presa, com vedação que impeça a entrada de líquidos, poeiras, insetos e outros animais no seu interior. Sendo assim, não é possível instalar tampas que não permitam a isolação do reservatório no tocante à entrada de águas pluviais, por exemplo, em coberturas de edifícios. Também não é adequado que essas tampas sejam fabricadas com materiais que sofrem deterioração precoce por ação da água. 5. Reservatórios de água apoiados diretamente sobre o solo ou enterrados Para reservatórios com essa condição construtiva, muito utilizada antes de 1998, observa-se que aspectos de vazamentos ou problemas de deficiências no sistema de impermeabilização são graves, tendo em vista que poderá haver contaminação da água devido à presença de lençol freático ou vazamentos em tubulações de esgoto próximas etc. Além dos aspectos de contaminação e, obviamente, deterioração das paredes do reservatório, há aspectos relacionados a solapamentos de solos adjacentes, podendo haver conseqüências danosas à estabilidade estrutural da edificação ou do próprio reservatório. Cabe ressaltar que, a partir de 1998, não é mais permitido que os reservatórios inferiores sejam apoiados diretamente sobre o solo ou enterrados, devendo haver estrutura com afastamento mínimo de 60 cm em todas as paredes e lajes de fundo. 6. Presença de tubulações de esgoto dentro de reservatórios de água É proibida a passagem de tubulações de esgoto ou mesmo de águas pluviais dentro de reservatórios, sendo que essa situação incorre em risco iminente de contaminação da água. Elaborado por: Analisado por: Professor : Marcelo Gandra Falcone Alessandra Aparecida Vieira Marcelo Gandra Falcone QUANDO IMPRESSO CONSIDERAR PIRATARIA - CÓPIA NÃO AUTORIZADA
  • 135.
    UNINOVE Rev. B Engenharia deAvaliações e Perícias Manutenção Predial e Avaliação de Máquinas e Equipamentos 16/07/2011 Folha 135/424 Assim como não deve haver passagem de tubulações de esgoto ou águas pluviais dentro de reservatórios, também não é permitida a interligação entre essas tubulações. 7. Falta de pintura nas tubulações ou falta de repintura È comum a falta de pintura de sinalização e proteção nas tubulações hidráulicas. A Norma Regulamentadora de Segurança NR26 trata da sinalização e cores para orientar, advertir, restringir,identificar equipamentos de segurança , tubulações de líquidos e gases, também possíveis áreas de riscos, os trabalhadores a fim de evitar acidentes nos espaços de trabalho. As aplicações das cores são: Vermelho: equipamentos e aparelhos de incêndio Caixa de alarmes de incêndio, hidrantes, bombas de incêndio,etc. Não deve ser usada para sinalizar perigo. Amarelo : em tubulações deve ser usado para gases não liquefeitos, aplicado também em partes baixas, áreas de passagens para escadas, elevadores e como fundo de letreiros de advertência,etc. Branco: faixas de corredores e passarelas, localização de bebedouros, áreas de armazenagens, zonas de segurança Preto: canalizações de inflamáveis de alta viscosidade(óleo lubrificante, óleo combustível, etc.).Pode ser usado com branco, em condições especiais. Azul : canalizações de ar comprimido, advertência contra uso e movimentação de equipamentos, avisos de fontes de potência, etc. Verde: transmite idéia de segurança, localização de EPI, caixas de equipamento de socorro de urgência, macas, caixa de máscaras, canalização de água, emblemas de segurança, etc. Laranja: canalizações com ácidos, partes móveis de máquinas e equipamentos, dispositivos de corte, bordas de serras, etc. Púrpura : perigo de irradiações eletromagnéticas de partículas penetrantes nucleares, portas ou aberturas para locais com materiais radioativos, ou contaminados com radioatividade, equipamentos produtores de radiação. Lilás: canalizações que contem álcalis, pode ser usada em refinarias para indicar lubrificantes. Elaborado por: Analisado por: Professor : Marcelo Gandra Falcone Alessandra Aparecida Vieira Marcelo Gandra Falcone QUANDO IMPRESSO CONSIDERAR PIRATARIA - CÓPIA NÃO AUTORIZADA
  • 136.
    UNINOVE Rev. B Engenharia deAvaliações e Perícias Manutenção Predial e Avaliação de Máquinas e Equipamentos 16/07/2011 Folha 136/424 Cinza claro: canalizações em vácuo. Cinza escuro : identificar eletrodutos Alumínio: canalizações com gases liquefeitos, inflamáveis e combustíveis de baixa viscosidade (óleo diesel, gasolina,querosene, etc.) Marrom: pode ser adotado para fluídos não identificados pelas demais cores. Observa-se que em casos de tubulações de ferro galvanizado, a pintura deve contribuir em caráter preventivo contra a corrosão, observando os parâmetros de tipos de tintas, fundos para aderência, fundos anticorrosivos etc. Em edificações que procedem ao reuso da água de lavagem, águas pluviais etc., essas tubulações deverão ter expressamente em suas pinturas a informação “água não potável”. 8. Obstrução interna de tubos devido à falta de replantio de árvores e outras plantas em jardins ou jardineiras 9 .Evidentemente, existem outras anomalias de origem de projeto e/ou execução que não foram abordadas, porém, pode-se destacar para a falta de dispositivos de inspeção em mudanças de direção nas tubulações de águas pluviais e esgotos, junto aos subsolos; problemas relativos ao dimensionamento de tubulações com retornos de líquidos junto às unidades privativas; falta de tubos de ventilação; baixas declividades em tubulações horizontais de águas pluviais e esgotos, dentre outros. Em conseqüência das deficiências citadas, cabe listar alguns dos danos causados:        Consumos excessivos de água e energia devido a vazamentos e consumos excessivos de bombas, dentre outros equipamentos co-relacionados; Falta de potabilidade das águas armazenadas e que circulam nas instalações de água fria; Deterioração dos componentes e sistemas da construção por infiltração, causadas por vazamentos hidráulicos; Deterioração da instalação elétrica, incorrendo em risco de curto-circuito e incêndios; Ruptura de porções de terreno, provocando deslizamentos (solapamentos) e afundamentos, devido a infiltrações de água no solo causadas por ruptura ou vazamentos de tubulações hidráulicas. Observa-se que em alguns casos de vazamentos de reservatórios inferiores, enterrados, pode-se ter problemas de ordem de estabilidade estrutural e perigo à segurança; Contaminações de lençol freático devido a vazamentos ou rupturas de tubulações de esgoto; Contaminações de recursos hídricos naturais, quando há a ligação de esgotos em águas pluviais, incorrendo na contaminação da galeria de águas pluviais da rede pública. Elaborado por: Analisado por: Professor : Marcelo Gandra Falcone Alessandra Aparecida Vieira Marcelo Gandra Falcone QUANDO IMPRESSO CONSIDERAR PIRATARIA - CÓPIA NÃO AUTORIZADA
  • 137.
    UNINOVE Rev. B Engenharia deAvaliações e Perícias Manutenção Predial e Avaliação de Máquinas e Equipamentos 16/07/2011 Folha 137/424 9.7.3 Recomendações e orientações técnica 1) Com relação a problemas e recomendações sobre funcionamento de bombas de recalque, resumidamente, segue tabela orientativa: Problemas Bomba não fornece água Baixa pressão Baixa vazão Superaquecimento do motor Motor não funciona Excesso de ar na rede hidráulica Perda de escorvamento Prováveis causas e Providências A bomba não está escorvada. Portanto, desligue-a, escorve outra vez e tente novamente. A bomba não deve ser operada mais do que 30 segundos sem bombeamento, para evitar o superaquecimento e queima do selo mecânico. A bomba não está completamente escorvada ou com problemas de cavitação. Motor com baixa rotação. Rotação no sentido errado. Manômetro com defeito. Rotores parcialmente obstruídos. Vazamentos de ar na tubulação de sucção. Chamar o técnico responsável pela manutenção da bomba. Motor com baixa rotação. Rotação no sentido errado. Rotores parcialmente obstruídos. Tubo de sucção ou ralo parcialmente obstruídos. Chamar o técnico responsável pela manutenção da bomba. Conexões dos fios ou voltagem errada. Rotação baixa ou invertida. Atrito dos rotores nos estágios, devido à má ajustagem. Má ventilação. Chamar o técnico responsável pela manutenção da bomba. Chaves abertas, fusíveis queimados, conexões soltas ou relê de sobrecarga aberto. Chave centrífuga do motor está inoperante. Conexões elétricas do motor erradas. Chamar o técnico responsável pela manutenção da bomba. Entrada de ar pela tubulação de sucção. Água gasosa. Retirar ar da tubulação com profissional habilitado. Entrada de ar pela tubulação de sucção. Água gasosa. Retirar ar da tubulação com profissional habilitado. 2) Desinfecção e limpeza dos reservatórios e tubulações: A desinfecção é a operação destinada a reduzir a presença de microorganismos, patogênicos ou não, a fim de estabelecer parâmetros de potabilidade na água armazenada. A substância ativa à desinfecção é o cloro livre, obtido pela dissolução do hipoclorito de sódio na água a ser desinfetada. Já a limpeza consiste na remoção de materiais e substâncias que ficam depositados dentro dos reservatórios. A limpeza deve observar os procedimentos pré-estabelecidos na ABNT NBR 5.626/98, já citada, item 6.5.2.2. Recomenda-se que não sejam empregadas máquinas de alta pressão para as lavagens das paredes internas dos reservatórios, podendo haver riscos de ruptura ou perda de aderência nos sistemas de impermeabilização, quando suas membranas (manta) estão aparentes. Elaborado por: Analisado por: Professor : Marcelo Gandra Falcone Alessandra Aparecida Vieira Marcelo Gandra Falcone QUANDO IMPRESSO CONSIDERAR PIRATARIA - CÓPIA NÃO AUTORIZADA
  • 138.
    UNINOVE Rev. B Engenharia deAvaliações e Perícias Manutenção Predial e Avaliação de Máquinas e Equipamentos 16/07/2011 Folha 138/424 É recomendável que a desinfecção e a limpeza sejam feitas, pelo menos, uma vez ao ano. Código Sanitário, Lei 13.725/2004, seção 1 , Artigo 27 Alínea III: "Seção I - Abastecimento de Água para Consumo Humano Art. 25. ... Art. 26. .... Art. 27. Nos projetos, obras e operações de sistemas de abastecimento de água, públicos ou privados, individuais ou coletivos, devem ser obedecidos os seguintes princípios gerais, independentemente de outras exigências técnicas eventualmente estabelecidas: I – ..... II – ... III – toda água distribuída por sistema de abastecimento deve ser submetida, obrigatoriamente, a um processo de desinfecção, de modo a assegurar sua qualidade do ponto de vista microbiológico e manter concentração residual do agente desinfetante na rede de distribuição, de acordo com norma técnica; IV – ... V – ... " Como informado anteriormente a NORMA TÉCNICA: NBR 05626/1998 usada como referencia é: seção 7.6.2: " 7.6.2 Como uma medida de proteção sanitária, é fundamental que a limpeza e a desinfecção do reservatório de água potável sejam feitas uma vez por ano. Um procedimento de eficácia reconhecida deve ser adotado. Recomenda-se adotar o procedimento a seguir descrito:" Após a realização de cada desinfecção e limpeza, deve-se atualizar o registro e a informação, a serem fixados junto à tampa do reservatório. Também é recomendável que sejam feitos ensaios físico-químicos das águas armazenadas. A lei que define o mês de limpeza da caixa d'água é a 10.730/89. Foi revogada pelo PL 102/07 que deu origem à Lei 14.485/07 que Consolida a Legislação Municipal referente às datas comemorativas, eventos e feriados do Município de São Paulo, e dá outras providências. Consta na alínea "c" do inciso "CXXIX" do artigo 7º desta Lei 14.485 de 19 de julho de 2007 que o mês de julho é o mês de limpeza das caixas d'águas dos órgãos municipais, orientando para ser incentivada a limpeza também pela comunidade. Consta também nesta lei ser o dia 21 de março o dia da água. Porém, a Sabesp recomenda em seu link: http://www.sabesp.com.br/CalandraWeb/CalandraRedirect/?temp=2&temp2=3& proj=sabesp&pub=T&nome=Uso_Racional_Agua_Generico&docid=E50615CE Elaborado por: Analisado por: Professor : Marcelo Gandra Falcone Alessandra Aparecida Vieira Marcelo Gandra Falcone QUANDO IMPRESSO CONSIDERAR PIRATARIA - CÓPIA NÃO AUTORIZADA
  • 139.
    UNINOVE Rev. B Engenharia deAvaliações e Perícias Manutenção Predial e Avaliação de Máquinas e Equipamentos 16/07/2011 Folha 139/424 526E0D26832571AE0062ED78&db; que as caixas d'água sejam limpas semestralmente. Elaborado por: Analisado por: Professor : Marcelo Gandra Falcone Alessandra Aparecida Vieira Marcelo Gandra Falcone QUANDO IMPRESSO CONSIDERAR PIRATARIA - CÓPIA NÃO AUTORIZADA
  • 140.
    UNINOVE Rev. B Engenharia deAvaliações e Perícias Manutenção Predial e Avaliação de Máquinas e Equipamentos 16/07/2011 Folha 140/424 Figura 53 – Cuidados com a Limpeza da Caixa dágua site sabesp em 09/2010. Em casos de abastecimentos de água por meio de captação de águas profundas, poços artesianos, recomenda-se que sejam feitos ensaios periódicos nas saídas do poço e depois do tratamento empregado na água para eventuais correções. Observa-se que se tratando de água que abastece, também, outros sistemas, como é o caso de sistema de ar condicionado central por água gelada, deve-se fazer outros controles mais rigorosos da água, inclusive em diversos pontos da instalação, conforme será abordado no item específico desse sistema: Elaborado por: Analisado por: Professor : Marcelo Gandra Falcone Alessandra Aparecida Vieira Marcelo Gandra Falcone QUANDO IMPRESSO CONSIDERAR PIRATARIA - CÓPIA NÃO AUTORIZADA
  • 141.
    UNINOVE Rev. B Engenharia deAvaliações e Perícias Manutenção Predial e Avaliação de Máquinas e Equipamentos 16/07/2011 Folha 141/424 o Nunca proceder à ligação de esgotos em águas pluviais. o Limpar e desobstruir ralos, calhas e grelhas de coleta de águas pluviais periodicamente. o Limpar ralos internos, sifãos de pias e lavatórios destinados à coleta de esgotos, a fim de não haver entupimentos. o Não usar emendas entre tubos com materiais incompatíveis ou, ainda, proceder a reparos de vazamentos em conexões ou trechos de tubulações com fissuras com materiais do tipo durepóxi. Os itens de recomendações abaixo foram resumidos da ABNT NBR 5.626, itens 7.4 e 7.5, referentes à manutenção de tubulações, torneiras, registros e válvulas da instalação predial de água fria. 1. Os suportes das tubulações devem estar em bom estado e com espaçamentos adequados para que não haja problemas de deformações excessivas e vazamentos. 2. Juntas com vazamentos devem ser apertadas, para casos de rosca, ou refeitas. Caso não seja possível eliminar os vazamentos, deve-se proceder a troca dos trechos de tubulações entre conexões, evitando-se emendas e uniões de materiais incompatíveis (por exemplo: ferro galvanizado com cobre ou PVC). 3. Usar adaptadores na execução de novas juntas, principalmente em casos de rosca para soldas. 4. Em casos de corrosão nas tubulações, as mesmas deverão ser investigadas, verificando-se a abrangência e o tipo de corrosão, além da necessidade de troca de tubulações. 5. Executar pinturas e repinturas periódicas, obedecendo às identificações das cores, conforme o tipo de tubulação. Para as pinturas, deve-se observar o material do tubo, a fim de se escolher a melhor tinta e a necessidade de se aplicar fundo para promover a aderência ou minimizar questões de corrosão por ação direta da umidade do ar. 6. Qualquer sinal de mau funcionamento, com problemas de fechamento ou perda de vazão nas torneiras, deve-se fazer as ações corretivas, tais como: aperto em partes móveis; troca de vedantes (courinho) ou, ainda, troca da própria torneira. Elaborado por: Analisado por: Professor : Marcelo Gandra Falcone Alessandra Aparecida Vieira Marcelo Gandra Falcone QUANDO IMPRESSO CONSIDERAR PIRATARIA - CÓPIA NÃO AUTORIZADA
  • 142.
    UNINOVE Rev. B Engenharia deAvaliações e Perícias Manutenção Predial e Avaliação de Máquinas e Equipamentos 16/07/2011 Folha 142/424 Observa-se que, em casos de gotejamento, há o desperdício de água, além de aumento de consumo. 7. Os crivos de chuveiros, arejadores e outros componentes devem ser limpos dentro da periodicidade recomendada pelos fabricantes. 8. As válvulas de descargas devem ter inspeções periódicas, a fim de verificar desperdícios de águas devido à má regulagem ou necessidade de manutenção, como troca de molas e vedações internas. 9. Válvulas redutoras de pressão devem ter inspeção e manutenção periódicas realizada por empresa especializada. Seu funcionamento deve ser aferido periodicamente pela leitura em manômetros, instalados na tubulação depois dessas válvulas, a fim de verificar a pressão de serviço. 9.7.4 Curiosidades e dicas  Banheiros, cozinhas e áreas de serviço sem utilização por longo tempo podem acarretar mau cheiro, em função da ausência de água nos e sifões. Para eliminar o problema, basta adicionar uma pequena quantidade de óleo de cozinha para a formação de uma película, evitando-se a evaporação.  O sistema de aviso e/ou ladrão não deve ter as suas tubulações obstruídas.  Recomendam-se inspeções periódicas nas válvulas redutoras de pressão, a fim de verificar eventuais desgastes. A inspeção, regulagem e manutenção devem ser feitas por profissionais habilitados.  O sistema de combate a incêndio não pode ser modificado e o volume reservado ao combate de incêndio não deve ser alterado.  As bombas de recalque devem funcionar em rodízio. Manter sempre uma bomba em espera. O rodízio deve ser feito a cada três meses, cuidando para que antes da partida o corpo da bomba esteja cheio de líquido, pois, se operar mais de 30 segundos a seco, as faces de contato do selo mecânico serão danificadas, resultando em vazamento pelo eixo da bomba. Para o escorvamento da bomba, reparo da bomba para funcionamento, devese seguir as instruções: 1. 2. 3. 4. Fechar o registro da tubulação de descarga; Remover o plug da parte superior do corpo; Enchê-lo completamente com água; e Recolocar o plug. Elaborado por: Analisado por: Professor : Marcelo Gandra Falcone Alessandra Aparecida Vieira Marcelo Gandra Falcone QUANDO IMPRESSO CONSIDERAR PIRATARIA - CÓPIA NÃO AUTORIZADA
  • 143.
    UNINOVE Rev. B Engenharia deAvaliações e Perícias Manutenção Predial e Avaliação de Máquinas e Equipamentos 16/07/2011 Folha 143/424 Recomenda-se para a manutenção preventiva ou corretiva a contratação de empresa especializada.  A bomba de incêndio deve ser acionada conforme periodicidade.  Os registros existentes nos subsolos e barriletes devem ser completamente abertos e fechados conforme periodicidade recomendada pelo fabricante.  Verificar e manter limpos os ralos e grelhas, bem como as calhas na cobertura. Como desentupir uma pia Com o auxílio de luvas de borracha, um desentupidor e uma chave inglesa, seguir os seguintes passos: Figura 54 –Pia- IBAPE –SP, PUJADAS, F.Z.A.; GOMIDE, T.L.F.; FAGUNDES, J.C.P. e OUTROS, Inspeção Predial –CheckUp Predial: Guia da Boa Prevenção. São Paulo: Leud, 2009. 1. Encha a pia de água; 2. Coloque o desentupidor sobre o ralo, pressionando-o para baixo e para cima, observando se ele está totalmente submerso; 3. Quando a água começar a descer, continue a movimentar o desentupidor, deixando a torneira aberta; 4. Se a água não descer, tente com a mão ou com o auxílio de uma chave inglesa, desatarraxar o copo do sifão; nesse copo ficam depositados os resíduos, geralmente responsáveis pelo entupimento, mas não esqueça de colocar um balde embaixo do sifão, pois a água pode cair no chão; 5. Com um arame, tente desobstruir o ralo da pia, de baixo para cima, algumas vezes; os resíduos se localizam nesse trecho do encanamento, daí a necessidade de usar um arame; 6. Coloque o copo que você retirou do sifão; não convém colocar produtos à base de soda cáustica dentro da tubulação de esgoto; 7. Depois do serviço pronto, abra a torneira e deixe correr água em abundância, para limpar bem. Elaborado por: Analisado por: Professor : Marcelo Gandra Falcone Alessandra Aparecida Vieira Marcelo Gandra Falcone QUANDO IMPRESSO CONSIDERAR PIRATARIA - CÓPIA NÃO AUTORIZADA
  • 144.
    UNINOVE Rev. B Engenharia deAvaliações e Perícias Manutenção Predial e Avaliação de Máquinas e Equipamentos 16/07/2011 Folha 144/424 Como consertar uma torneira que está vazando Figura 55 –Torneira- IBAPE –SP, PUJADAS, F.Z.A.; GOMIDE, T.L.F.; FAGUNDES, J.C.P. e OUTROS, Inspeção Predial – Check-Up Predial: Guia da Boa Prevenção. São Paulo: Leud, 2009.  Utilizando uma chave de fenda, desrosqueie o parafuso que prende a cruzeta.  Com o auxílio de um alicate de bico, desrosqueie a porca que prende a canopla para poder ter acesso ao mecanismo de vedação.  Com o auxílio de um alicate de bico, desrosqueie o mecanismo de vedação do corpo. Como desentupir um chuveiro Figura 56 – Chuveiro- IBAPE –SP, PUJADAS, F.Z.A.; GOMIDE, T.L.F.; FAGUNDES, J.C.P. e OUTROS, Inspeção Predial – Check-Up Predial: Guia da Boa Prevenção. São Paulo: Leud, 2009.     Retire as capa protetora do crivo. Retire a proteção metálica (quando houver). Retire o plástico ou borracha preta. Com o auxílio de uma escova de dentes, limpe o crivo desobstruindo os orifícios que podem ter acumulado detritos. Como regular a caixa de descarga acoplada da bacia sanitária Regulagem:  Com cuidado, abra e retire a tampa da caixa acoplada.  Com a ajuda de um alicate, rosqueie a bóia, deixando-a mais firme para que, quando a caixa estiver cheia, não permita que a água transborde pelo ladrão. Substituição:  Com cuidado, abra e retire a tampa da caixa acoplada.  Desrosqueie a bóia. Elaborado por: Analisado por: Professor : Marcelo Gandra Falcone Alessandra Aparecida Vieira Marcelo Gandra Falcone QUANDO IMPRESSO CONSIDERAR PIRATARIA - CÓPIA NÃO AUTORIZADA
  • 145.
    UNINOVE Rev. B Engenharia deAvaliações e Perícias Manutenção Predial e Avaliação de Máquinas e Equipamentos 16/07/2011 Folha 145/424  Leve-a a um depósito de materiais de construção para que sirva de modelo para a compra de uma nova; com a nova bóia em mãos, encaixe-a e rosqueie-a exatamente no local de onde a antiga foi retirada. TESTES DE VAZAMENTOS DE ÁGUA Os testes abaixo, recomendados por várias companhias de distribuição de água, podem ser realizados periódicamente pelo zelador: 1. Na válvula ou na caixa de descarga; 2. Em reservatórios (cisternas) de edifícios; 3. No cano alimentado diretamente pela rede. Na válvula ou na caixa de descarga: 1. Jogue cinza de cigarro no vaso sanitário; 2. O normal é a cinza ficar depositada no fundo do vaso; 3. Em caso contrário, é sinal de vazamento na válvula ou na caixa de descarga. OBSERVAÇÃO: Nas bacias cuja saída da descarga for para trás (direção da parede), deve-se fazer o teste esgotando-se a água. Se a bacia voltar a acumular água, há vazamento na válvula ou na caixa de descarga. Em reservatórios (cisternas) de edifícios: 1. Feche o registro de saída do reservatório do subsolo; 2. Feche completamente a torneira da bóia; 3. Marque no reservatório o nível da água e, após uma hora, no mínimo, veja se ele baixou. Em caso afirmativo, há vazamento no cano alimentado diretamente pela rede: 1. Feche o registro do cavalete; 2. Abra uma torneira alimentada diretamente pela rede da companhia de água (torneira do jardim, por exemplo); 3. Espere até a água parar de correr; 4. Coloque um copo cheio de água na boca da torneira; 5. Se houver sucção da água do copo pela torneira, é sinal que existe vazamento no cano alimentado diretamente pela rede. Elaborado por: Analisado por: Professor : Marcelo Gandra Falcone Alessandra Aparecida Vieira Marcelo Gandra Falcone QUANDO IMPRESSO CONSIDERAR PIRATARIA - CÓPIA NÃO AUTORIZADA
  • 146.
    UNINOVE Rev. B Engenharia deAvaliações e Perícias Manutenção Predial e Avaliação de Máquinas e Equipamentos 16/07/2011 Folha 146/424 9.8 Sistema de Instalações de gás 9.8.1. Descrição e finalidade do sistema As instalações de gás são compostas pelo conjunto de tubulações e equipamentos, aparentes ou embutidos, destinados ao transporte e controle do fluxo de gases em uma edificação. Assim, os componentes do sistema de instalações de gás são: tubulações, registros, válvulas e medidores de vazão. O gás utilizado pode ser o gás liquefeito de petróleo (GLP) ou gás natural (GN). No caso do gás GLP, este é mais pesado que o ar e caso ocorra vazamento, ele se acumulará junto ao piso. As instalações de GLP merecem cuidados especiais, pois qualquer vazamento poderá ocasionar situação de risco, tendo em vista que em contato com o oxigênio do ar e com uma possível faísca, pode ocorrer uma explosão. Já no caso do GN, por ser mais leve que o ar, o seu vazamento é menos perigoso pois facilita a dispersão, porém não se pode deixá-lo confinado, ou seja, onde houver tubulações aparentes, a ventilação deve ser permanente e obrigatória. As tubulações aparentes por onde passam o gás devem ser pintadas na cor amarela, conforme ABNT NBR 12.694, e não devem passar no interior de dutos de lixo, ar condicionado, shafts hidráulicos, reservatórios de água, dutos para incineradores de lixo, poços de elevadores, compartimentos de equipamentos elétrico, compartimentos destinados a dormitórios, poços de ventilação, dente outros. O shaft da instalação de gás deverá ter ventilação permanente e adequada nas partes superior e inferior, sendo que esses vazios devem ser sempre visitáveis. Os materiais comumente usados na execução das prumadas e ramais de distribuição são tubos de cobre, sem costura, ou tubos de aço, com ou sem costura, preto ou galvanizado. As edificações normalmente são dotadas de rede de gás, para alimentação do fogão, forno, podendo ainda alimentar caldeiras, aquecedores de passagem, máquinas de secar roupa, lareiras, churrasqueiras e demais. Cabe, por fim, destacar os tipos de abastecimento de gás existentes:  GN: fornecido por concessionária de serviços públicos, havendo entrada e cavalete de gás, com ou sem válvula de segurança, que interrompe o fornecimento de gás à medida que a pressão aumenta em relação a um parâmetro pré-estabelecido, pois considera que há vazamento interno na rede; Elaborado por: Analisado por: Professor : Marcelo Gandra Falcone Alessandra Aparecida Vieira Marcelo Gandra Falcone QUANDO IMPRESSO CONSIDERAR PIRATARIA - CÓPIA NÃO AUTORIZADA
  • 147.
    UNINOVE Rev. B Engenharia deAvaliações e Perícias Manutenção Predial e Avaliação de Máquinas e Equipamentos 16/07/2011 Folha 147/424  GLP: pode ser fornecido em botijões ou cilindros, por empresas especializadas, tipo Ultragaz. Poderá haver centrais de gás GLP com cilindros fixos, que são reabastecidos por caminhões dessas empresas. Ainda há, em muitas edificações residenciais antigas, os botijões de gás instalados em áreas de serviços, embaixo de pias de cozinhas, oferecendo altos riscos à segurança da edificação. 9.8.2. Principais anomalias e falhas As anomalias e falhas mais comuns nas instalações de gás, independente do tipo de gás fornecido, são: 1. Vazamentos de gás pelas tubulações, conexões, válvulas etc.  O vazamento de gás, sem dúvida, é uma anomalia que oferece grande risco à integridade física dos usuários e da edificação, tendo em vista que pode haver explosões, incêndios, intoxicações, dentre outros danos.  O vazamento de gás poderá estar relacionado a problemas oriundos de má qualidade de soldas das tubulações, sendo esse um problema construtivo, apesar de que as instalações são entregues após testes de estanqueidade de acordo com as normas da ABNT e das concessionárias.  Podem-se observar, também, problemas relacionados à falta de manutenção e controle de válvulas, flexíveis cortados, além de corrosões eletroquímicas em tubulações.  Observa-se, ainda, que em instalações de gás GLP não é permitido o uso de tintas ou fibras vegetais (tais como estopa) como vedantes em tubos rosqueáveis, sendo que esses devem ser compatíveis com o GLP.  È indispensável o uso de dispositivos de segurança, como válvulas de bloqueio automáticas, reguladores de pressão, além de detectores de gás fixos ou manuais a serem utilizados periodicamente pelo pessoal da manutenção. 2. Corrosão nas tubulações  Podem ser causadas devido à ação de águas agressivas ou outros elementos agressivos. Elaborado por: Analisado por: Professor : Marcelo Gandra Falcone Alessandra Aparecida Vieira Marcelo Gandra Falcone QUANDO IMPRESSO CONSIDERAR PIRATARIA - CÓPIA NÃO AUTORIZADA
  • 148.
    UNINOVE Rev. B Engenharia deAvaliações e Perícias Manutenção Predial e Avaliação de Máquinas e Equipamentos 16/07/2011 Folha 148/424  Cabe destacar que tubulações enterradas devem ser protegidas por canaletas de concreto, pintadas com material impermeabilizante, a fim de não existirem infiltrações.  A falta de proteção de tubulações enterradas pode causar corrosões nas tubulações de gás, além de rompimentos. 3. Proximidade de instalações elétricas junto a tubulações de gás Segundo a ABNT NBR 15.526 – Instalações Internas de gás Liquefeito de Petróleo (GLP) – Projeto e Execução, e a Norma RIP 2008 – 4 da COMGAS (disponível no Site da COMGAS), uma tubulação de gás tipo GLP não deve passar próxima de instalações elétricas, a não ser que obedeça à seguinte distância mínima:  0,3 m de afastamento mínimo de condutores de eletricidade, se estes forem protegidos por conduítes; em casos contrários, esse afastamento deverá ser de, no mínimo, 0,5 m;  Ter afastamento das demais tubulações para que possa ser realizada sua manutenção;  Em casos de sobreposições, a tubulações, a tubulação de GLP deverá ficar abaixo de todas as outras.  Com relação às instalações com gás natural, cabe o mesmo tipo de observação. Essa medida de afastamento entre instalações de gás e elétricas tem como intuito a segurança, devendo ser observada na fase de projeto, porém em situações de reformas ou desvios de linhas, os condomínios deverão observar essa medida. 9.8.3 Itens de inspeção: Instalações de Gás (GLP e Botijão):  Decreto 32.329/92 - SEÇÃO 9.3 – Instalações Prediais: 9.3.2.2 – O armazenamento de recipientes de gás deverá estar fora das edificações, em ambiente exclusivo dotado de aberturas para ventilação permanente.  Decreto 32.329/92 - SEÇÃO 17.J – Condições Construtivas especiais: 17.J.6 – As instalações permanentes de gás combustível deverão atender às NTC da Companhia de Gás de São Paulo – COMGÁS  Decreto 24.714/87: ART 5. - Não será permitida a utilização de gás em botijões ou cilindros nas edificações que disponham de instalação interna de gás canalizado, situadas em logradouros já servidos por rede de distribuição de gás canalizado. Elaborado por: Analisado por: Professor : Marcelo Gandra Falcone Alessandra Aparecida Vieira Marcelo Gandra Falcone QUANDO IMPRESSO CONSIDERAR PIRATARIA - CÓPIA NÃO AUTORIZADA
  • 149.
    UNINOVE Rev. B Engenharia deAvaliações e Perícias Manutenção Predial e Avaliação de Máquinas e Equipamentos 16/07/2011 Folha 149/424  Instrução Técnica Nº 28/1/2004 – CORPO DE BOMBEIROS: As tubulações aparentes devem: a) Ter as distâncias mínimas entre a tubulação de gás e condutores de eletricidade de 0,30 m ( trinta centímetros ), se o condutor for protegido por conduíte e 0,50 m ( cinqüenta centímetros ) , nos casos contrários; b) Ter um afastamento das demais tubulações suficiente para ser realizada manutenção nas mesmas; c) Ter afastamento de no mínimo 2 m ( dois metros ) de pára-raios e seus respectivos pontos de aterramento de acordo com a NBR 5419/93; d) Em caso de superposição de tubulação a tubulação de gás deve ficar abaixo das outras tubulações.  Em caso de centrais de GLP consultar: NBR 15523 - 2004 - Central De Glp 9.8.4. Recomendações e orientações técnicas Para melhor controle e prevenção contra os problemas de vazamentos e danos deles decorrentes, têm-se algumas orientações:     Observa-se que alguns empreendimentos fazem uso de uma fita específica da marca Torofita ao redor dos trechos de tubulações de gás, principalmente soldas, que passam perto de instalações elétricas. Alerta-se que a norma não especifica esse tipo de solução, mas pode-se fazer estudo e verificar especificações desse material a fim de facilitar a solução do problema. Não utilizar a central de GLP e Centrais de medidores como depósito de materiais de qualquer natureza. Tais centrais deverão possuir ventilação natural permanente. Verificar o prazo de validade das mangueiras flexíveis, trocando-as quando necessário. Quanto ao abastecimento a granel de GLP; para cilindros denominados P190, os operadores deverão sempre visualizar um ao outro para que, numa emergência, os procedimentos de segurança sejam efetuados; assim, não deve ter nenhum obstáculo entre o caminhão abastecedor e o cilindro a ser abastecido, a mangueira flexível deve estar em linha reta e o zelador não deve ficar junto da equipe que está abastecendo. È vedado que a mangueira flexível passe por:     Áreas internas às edificações, em locais sujeitos ao tráfego de veículos sobre a mangueira; Nas proximidades de fontes de calor ou fontes de ignição, como tubulações de vapor, fornos etc.; Em áreas sociais, tais como hall, salões de festas, piscinas, play-grounds; Próximo a aberturas no piso, como ralos, caixas de gordura, esgoto, bueiros, galerias subterrâneas e similares; Elaborado por: Analisado por: Professor : Marcelo Gandra Falcone Alessandra Aparecida Vieira Marcelo Gandra Falcone QUANDO IMPRESSO CONSIDERAR PIRATARIA - CÓPIA NÃO AUTORIZADA
  • 150.
    UNINOVE Engenharia de Avaliaçõese Perícias Manutenção Predial e Avaliação de Máquinas e Equipamentos   Rev. B 16/07/2011 Folha 150/424 Quanto à central de GLP, a mesma deve atender às condições mínimas de segurança, possuindo extintores de pó químico em quantidade compatível com o volume armazenado; não possuir ralos, grelhas e demais vãos a uma distância inferior a 1,5 m da central; possuir afastamento mínimo de 3,00 m de materiais de fácil combustão e pontos de ignição; estar no pavimento térreo e ser bem ventilada; Uso de detectores de gás automatizados ou manuais para detecção de vazamentos. Em função do exposto, alerta-se aos responsáveis dos edifícios sobre a necessidade de vistorias periódicas nas instalações de gás, observando se há odores característicos provenientes de algum vazamento, chamando, como já observado, as operadoras responsáveis pelo fornecimento do gás, pois essas possuem um rol de empresas de manutenção que farão os serviços dentro das normas, com engenheiro responsável, habilitado. 9.8.5. Curiosidades e dicas     Sempre que o sistema não for utilizado constantemente, ou em caso de ausência prolongada no imóvel, mantenha os registros e as torneiras de gás fechados. Ao testar ou procurar vazamentos num equipamento ou tubulação aparentes, utilizar espuma de salão, nunca fósforos ou material inflamável. Não pendurar objetos nas tubulações aparentes de gás. Na cidade de São Paulo, de acordo com o Decreto municipal n.24.714, de 07/10/97, não é permitida a utilização de gás em botijões ou cilindros nas edificações que disponham de instalação interna de gás canalizado, situadas em logradouros com rede de distribuição de gás natural da concessionária. Recomendações da Cartilha do CONTRU: Elaborado por: Analisado por: Professor : Marcelo Gandra Falcone Alessandra Aparecida Vieira Marcelo Gandra Falcone QUANDO IMPRESSO CONSIDERAR PIRATARIA - CÓPIA NÃO AUTORIZADA
  • 151.
    UNINOVE Rev. B Engenharia deAvaliações e Perícias Manutenção Predial e Avaliação de Máquinas e Equipamentos 16/07/2011 Folha 151/424 Recomendações da Cartilha do CONTRU: Figura 57 – GLP – Recomendações da Cartilha do CONTRU. Elaborado por: Analisado por: Professor : Marcelo Gandra Falcone Alessandra Aparecida Vieira Marcelo Gandra Falcone QUANDO IMPRESSO CONSIDERAR PIRATARIA - CÓPIA NÃO AUTORIZADA
  • 152.
    UNINOVE Rev. B Engenharia deAvaliações e Perícias Manutenção Predial e Avaliação de Máquinas e Equipamentos 16/07/2011 Folha 152/424 Recomendações da Cartilha do CONTRU: Elaborado por: Analisado por: Professor : Marcelo Gandra Falcone Alessandra Aparecida Vieira Marcelo Gandra Falcone QUANDO IMPRESSO CONSIDERAR PIRATARIA - CÓPIA NÃO AUTORIZADA
  • 153.
    UNINOVE Rev. B Engenharia deAvaliações e Perícias Manutenção Predial e Avaliação de Máquinas e Equipamentos 16/07/2011 Folha 153/424 9.9 Sistema de impermeabilização 9.9.1. Descrição e finalidade do sistema A impermeabilização é o tratamento mais importante que deve estar presente em todas as edificações, protegendo-as contra as infiltrações de líquidos, gases e vapores; onde o custo na fase inicial chega a + ou – 3% do valor da edificação, e quando não executada com qualidade técnica, pode ocasionar despesas da ordem de + ou – 20%, e em alguns casos irreparáveis. Tal proteção, muito embora não visível, encontra-se instalada sobre fundações, cortinas, lajes subpressão, poços de elevador, lajes, jardineiras, áreas frias, terraços, piscinas, decks, juntas de dilatação, reservatórios inferior e superior etc. Para atender a todas essas áreas deve-se ter sempre um projeto de impermeabilização, em que indicará os sistemas e materiais específicos à sua aplicação contemplando custos, garantia, vida útil etc. Os principais sistemas de impermeabilização são:    Membranas flexíveis moldadas in loco: emulsões asfálticas; soluções asfálticas; emulsões acrílicas; asfaltos oxidados; asfaltos modificados; elastômeros em solução Mantas flexíveis pré-fabricadas: mantas asfálticas; mantas elastoméricas; mantas poliméricas; Membranas rígidas moldadas in loco: cristalização; argamassa rígida. A importância da impermeabilização, além de permitir a habitabilidade e funcionalidade da construção civil, é relevada no objetivo de proteger a edificação de inúmeros problemas patológicos que poderiam surgir com infiltração de água, integrada ao oxigênio e a outros componentes agressivos da atmosfera, como gases poluentes, chuvas ácidas e ozônio, já que uma grande quantidade de materiais constituintes da construção civil sofre um processo de deterioração e de degradação, quando em presença dos meios agressivos da atmosfera. Elaborado por: Analisado por: Professor : Marcelo Gandra Falcone Alessandra Aparecida Vieira Marcelo Gandra Falcone QUANDO IMPRESSO CONSIDERAR PIRATARIA - CÓPIA NÃO AUTORIZADA
  • 154.
    UNINOVE Rev. B Engenharia deAvaliações e Perícias Manutenção Predial e Avaliação de Máquinas e Equipamentos 16/07/2011 Folha 154/424 Essas proteções, ou camadas impermeáveis, encontram-se instaladas tanto em trechos das ÁREAS COMUNS do edifício, como em trechos das ÁREAS PRIVATIVAS das unidades autônomas. Nas áreas comuns: Nos subsolos, a camada impermeável normalmente encontra-se instalada nas cortinas e lajes em contato com o solo, sempre acompanhado de um bom sistema de drenagem para retirar a água do subsolo por meio de bombas. Tal camada encontra-se protegendo o concreto armado das estruturas dos poços de elevadores e dos reservatórios enterrados contra a infiltração d’água do lençol freático, ou da umidade do solo que por capilaridade atinge as estruturas. Todas as lajes expostas ao intemperismo, ou seja, aquelas sujeitas às chuvas e à incidência direta dos raios solares, as quais abrigam, no térreo, o playground, os jardins, jardineiras e floreiras, as quadras de esporte, as áreas de circulação de pedestres e de veículos, as áreas de estacionamento, mesmo aquelas sob pilotis; as piscinas; o deck; as áreas de lazer com churrasqueira, juntas de dilatação etc.; também se encontram protegidas por um sistema de impermeabilização. Nas áreas privativas: As áreas da unidade autônoma exposta às águas de chuva, de lavagem e de banho, sejam elas da cozinha, da área de serviços, dos banheiros, dos terraços, varandas ou sacadas, jardineiras, saunas e piscinas, também contêm uma proteção impermeável compatível com o processo de sua utilização. 9.9.2. Principais anomalias e falhas A presença indesejável de água se origina basicamente por meio de: ascensão capilar de umidade do solo; infiltração de água decorrente de vazamentos ou penetração por frestas ou fissuras provenientes de movimentações térmicas, trincas em fachadas, caixas de luz (expostas), modificações e condensação de vapor por deficiência de ventilação. Problemas relacionados com a presença de umidade apresentam-se com alta incidência entre as principais anomalias. As infiltrações de água nas edificações, de maneira geral, são consideradas um dos principais agentes de degradação de elementos e componentes construtivos. Elaborado por: Analisado por: Professor : Marcelo Gandra Falcone Alessandra Aparecida Vieira Marcelo Gandra Falcone QUANDO IMPRESSO CONSIDERAR PIRATARIA - CÓPIA NÃO AUTORIZADA
  • 155.
    UNINOVE Rev. B Engenharia deAvaliações e Perícias Manutenção Predial e Avaliação de Máquinas e Equipamentos 16/07/2011 Folha 155/424 Diante dessa realidade, destaca-se a importância da elaboração do projeto de impermeabilização ou reimpermeabilização, conforme definido na Norma Técnica ABNT NBR 9.575/2003, e principalmente da execução dos serviços pertinentes ao sistema, que deverão ser realizados exclusivamente por profissional habilitado e especializado na área de impermeabilização. As anomalias e falhas mais freqüentes do sistema são: 1. Descolamentos da manta na região de rodapé, incorrendo em formações de fissuras no revestimento das paredes e/ou fachadas; 2. Descolamento da manta em regiões de ralos, soleiras, peitoris etc.; 3. Falhas nas emendas entre panos de mantas; 4. Falhas no tratamento de juntas de dilatação; 5. Perfurações na manta por razões diversas, tais como: fixação de peitoris, antenas coletivas, raízes axiais e profundas etc.; 6. Especificações inadequadas de materiais; 7. Ressecamento e/ou craqueamento do sistema impermeabilizante por falta de proteção mecânica; 8. Falta de camada separadora entre a membrana impermeabilizante e camada de proteção mecânica; 9. Falta de junta de dilatação em proteção mecânica, gerando fissuras de retração; 10. Falta de reforço de telas em mudança de base, ocasionando fissuras de dilatação térmica dos diferentes materiais; 11. Falta de tratamento adequado da base, como arredondamento de cantos e arestas, gerando pontos irregulares e perfurantes nas membranas; 12. Falta de caimentos para os ralos, incorrendo em problemas de empoçamento de água sobre os pisos e conseqüentes problemas de eflorescências e manchamentos, entre outras; 13. Falta de impermeabilização no teto dos reservatórios, que ocasiona a oxidação das armaduras provenientes da condensação da água e do gás do cloro presente na água. Todas as anomalias e falhas listadas geram infiltrações de água na edificação e comprometimento da vida útil do sistema, e o comprometimento dos revestimentos e da estrutura. As principais anomalias causadas em outros sistemas construtivos decorrentes do comprometimento da impermeabilização são: 1. 2. 3. 4. Corrosão de armadura e degradação do concreto; Corrosão de superfícies metálicas; Apodrecimento de madeiras; Eflorescência e formações de fissuras em revestimento de maneira geral; Elaborado por: Analisado por: Professor : Marcelo Gandra Falcone Alessandra Aparecida Vieira Marcelo Gandra Falcone QUANDO IMPRESSO CONSIDERAR PIRATARIA - CÓPIA NÃO AUTORIZADA
  • 156.
    UNINOVE Rev. B Engenharia deAvaliações e Perícias Manutenção Predial e Avaliação de Máquinas e Equipamentos 16/07/2011 Folha 156/424 5. Proliferação de bolor, manchas e umidades em revestimentos ou mobiliários; 6. Descolamentos dos revestimentos em geral; 7. Formação de bolhas na pintura, além de outras manchas; 8. Curtos-circuitos em instalações elétricas; 9. Carbonatação junto a pisos. Todas essas anomalias geram altos custos de recuperação e correção, sendo em alguns casos irreparáveis. As anomalias descritas podem causar, ainda, danos à saúde dos usuários, propiciando condições favoráveis para a manifestação de doenças respiratórias, pois o ambiente fica insalubre, sem falar no desconforto físico e no desgaste emocional do usuário, que sofre com a deterioração de seu bem patrimonial, além de diminuir a vida útil do imóvel. Como também o alto custo do seu reparo e o desconforto de ter que conviver com a obra durante o período da sua execução. 9.9.3 Recomendações e orientações técnicas A recomendação é sempre que aparecer uma umidade, eflorescência ou infiltração, deve-se contatar um profissional habilitado e especializado na área de impermeabilização, para que este, por meio de suas experiências, testes hidrostáticos e inspeções, possa elaborar um relatório técnico apontando as causas que originaram essa patologia, bem como a orientação técnica à sua correção. O olho clínico do técnico irá detectar a existência de umidade ou infiltração nos diversos elementos construtivos, tais como: estruturas, reservatórios de água, piscinas, fachadas, coberturas e instalações diversas, sem a necessidade de quebrar toda a área. Alerta-se que o sistema de impermeabilização é “passivo de manutenção preventiva” e deve sempre que detectado ser corrigido de imediato por profissional habilitado. Não chegar ao ponto da manutenção corretiva, pois irá ocasionar um custo muito elevado a sua correção e a insatisfação das pessoas que irão conviver com essa reforma. No entanto, é possível tomar precauções no sentido de não danificar ou comprometer o sistema, quais sejam: não utilizar máquinas de alta pressão para limpeza de reservatórios; lavagem de revestimentos em geral com adição de produtos químicos não recomendados; não executar perfurações em lajes ou locais impermeabilizados para fixação de antenas, hastes de para-raios, equipamentos de playground, rufos, postes, ou qualquer reforma antes de consultar um técnico da área. Elaborado por: Analisado por: Professor : Marcelo Gandra Falcone Alessandra Aparecida Vieira Marcelo Gandra Falcone QUANDO IMPRESSO CONSIDERAR PIRATARIA - CÓPIA NÃO AUTORIZADA
  • 157.
    UNINOVE Rev. B Engenharia deAvaliações e Perícias Manutenção Predial e Avaliação de Máquinas e Equipamentos 16/07/2011 Folha 157/424 Além dos aspectos já citados, observa-se a importância na escolha correta de vegetações para o plantio e manutenção em jardineiras, tendo em vista que plantas com raízes axiais e profundas perfuram a impermeabilização, penetram no tubo de dreno e causam dilatações em suas paredes por expansões das raízes, ocasionando trincas. Considerada a dificuldade de acesso ao sistema de impermeabilização, visto que o mesmo normalmente não se encontra aparente ou acessível, recomenda-se que a manutenção seja executada segundo as recomendações dos manuais e instruções dos fabricantes, fornecedores e construtores, por profissional habilitado e especializado, para que sejam preservadas as condições de eficiência previstas. Tem-se verificado que as infiltrações que aparecem junto às áreas impermeabilizadas nem sempre são provenientes da falha do sistema de impermeabilizadas nem sempre são provenientes da falha do sistema de impermeabilização. Recomendamos a elaboração de testes hidrostáticos por profissional habilitado e especializado na área para verificação da causa que vem ocasionando essa patologia. Normalmente a garantia oferecida nos sistemas de impermeabilização é de 5 (cinco) anos, mas sabemos que a maioria dos sistemas aplicados, quando executados de acordo com a norma, atingem mais de 15 anos em estado satisfatório. Isso mostra que o sistema de impermeabilização é passivo de manutenção, enquanto o material aplicado ainda responde pela sua performance e vida útil. 9.9.4. Curiosidade e dicas      A maioria dos sistemas de impermeabilização pode ser reparado quando apresenta infiltrações, não sendo necessário a sua substituição total; Devemos sempre buscar a CAUSA que originou a infiltração e não trabalhar a CONSEQUÊNCIA como medida paliativa; Grande parte das infiltrações têm suas origens nas mais diversas causas que podem ser: trinca de fachada, caixa de luz, movimentações térmicas e reformas de modo geral etc.; Dependendo do sistema de impermeabilização, este pode ultrapassar mais de 20 anos, enquanto a sua vida útil estiver atendendo à performance; Qualquer conserto da impermeabilização apresenta um custo muito alto, devido ao fato de ter que se remover tudo até a laje, sem contar com o desconforto de conviver com a reforma durante a sua execução. Elaborado por: Analisado por: Professor : Marcelo Gandra Falcone Alessandra Aparecida Vieira Marcelo Gandra Falcone QUANDO IMPRESSO CONSIDERAR PIRATARIA - CÓPIA NÃO AUTORIZADA
  • 158.
    UNINOVE Rev. B Engenharia deAvaliações e Perícias Manutenção Predial e Avaliação de Máquinas e Equipamentos 16/07/2011 Folha 158/424 Figura 58 –recomendações de Contratação –SP, PUJADAS, F.Z.A.; GOMIDE, T.L.F.; FAGUNDES, J.C.P. e OUTROS, Inspeção Predial –Check-Up Predial: Guia da Boa Prevenção. São Paulo: Leud, 2009. Elaborado por: Analisado por: Professor : Marcelo Gandra Falcone Alessandra Aparecida Vieira Marcelo Gandra Falcone QUANDO IMPRESSO CONSIDERAR PIRATARIA - CÓPIA NÃO AUTORIZADA
  • 159.
    UNINOVE Rev. B Engenharia deAvaliações e Perícias Manutenção Predial e Avaliação de Máquinas e Equipamentos 16/07/2011 Folha 159/424 9.10 Sistema de combate a incêndio 9.10.1 Descrição e finalidade do sistema São condições exigíveis que as edificações possuam, a fim de que a sua população possa abandoná-las em caso de incêndio, completamente protegida e que também permitam o acesso de auxílio externo (Corpo de Bombeiros) para o combate ao fogo e a retirada das pessoas. Os objetivos dos Sistemas de Combate a incêndio são: 1) a garantia da segurança à vida das pessoas que se encontrarem no interior de um edifício, quando da ocorrência de um incêndio; 2) a prevenção da conflagração e propagação do incêndio, envolvendo todo o edifício; 3) a proteção do conteúdo e a estrutura do edifício; 4) minimizar os danos materiais de um incêndio. Esses objetivos são alcançados pelo: 1) controle da natureza e da quantidade de materiais combustíveis constituintes e contidos no edifício; 2) dimensionamento da compartimentação interna, do distanciamento entre edifícios e da resistência ao fogo dos elementos de compartimentação; 3) dimensionamento da proteção e de resistência ao fogo da estrutura do edifício; 4) dimensionamento de sistemas de detecção e alarme de incêndio e/ou de sistemas de chuveiros automáticos de extinção de incêndio e/ou equipamentos manuais para combate; 5) dimensionamento das rotas de escape e dos dispositivos para controle do movimento da fumaça. 6) controle das fontes de ignição e riscos de incêndio; 7) acesso para os equipamentos de combate a incêndio; 8) treinamento de pessoal habilitado a combater um princípio de incêndio e coordenar o abandono seguro da população de um edifício; 9) gerenciamento e manutenção dos sistemas de proteção contra incêndio instalado; 10) controle dos danos ao meio ambiente decorrente de um incêndio. Fogo é o produto de uma reação química denominada combustão, que se caracteriza pelo desprendimento de luz e calor. O fogo tem sido responsável pela grande ocorrência de catástrofes ao longo dos anos. Para a extinção do fogo e evitar a sua propagação deve-se realizar a quebra da reação química denominada combustão, para tanto, temos equipamentos e medidas de proteções passivas e ativas de segurança contra incêndios. Elaborado por: Analisado por: Professor : Marcelo Gandra Falcone Alessandra Aparecida Vieira Marcelo Gandra Falcone QUANDO IMPRESSO CONSIDERAR PIRATARIA - CÓPIA NÃO AUTORIZADA
  • 160.
    UNINOVE Rev. B Engenharia deAvaliações e Perícias Manutenção Predial e Avaliação de Máquinas e Equipamentos 16/07/2011 Folha 160/424 As proteções ativas são aquelas que são acionadas de forma manual ou automática, como extintores, hidrantes e mangotinhos, chuveiros automáticos (sprinklers), detecção e alarme, sinalização e iluminação de emergência. As proteções passivas são aquelas incorporadas ao sistema construtivo, sendo funcionais durante toda a existência normal do edifício, e que, em situação de incêndio, dificultam o crescimento e a propagação do fogo e facilitam a fuga dos ocupantes ou então o ingresso das ações de combate, pelo Corpo de Bombeiros ou Brigada de Incêndio. Essas medidas estão vinculadas a diversos elementos, destacando-se: compartimentação horizontal e vertical, saídas de emergência, resistência dos elementos estruturais, resistência da envoltória do edifício, distanciamento seguro entre edifícios e sistema de controle de fumaça natural. 9.10.2 Descrição dos Subsistemas e itens a verificar A inspeção deverá ser restrita aos seguintes itens: extintores; hidrantes; saídas de emergência; brigadas de incêndio (ABNT NBR 14276); sinalização de emergência, rota de fuga; e outros, em função da especificidade da construção conforme anexo 17 do Decreto 32.329/92. 9.10.3 Edificação Lotação / Saídas / Rotas de Fuga (Enfoque "Larguras"): Principais falhas : As falhas mais comuns encontradas nas saídas de emergência são:  Portas obstruídas por vasos ornamentais, móveis, materiais diversos e principalmente por lixeiras que são instaladas nas antecâmaras;  Portas corta-fogo em mau estado de funcionamento das fechaduras;  Portas corta-fogo abertas e travadas com objetos;  Portas corta-fogo sem o selo da ABNT – lembrar que muitas vezes o selo está coberto por tinta;  Iluminação de emergência autônoma com baterias vencidas e/ou descarregadas;  Circuito da iluminação de emergência que é alimentado por gerador de energia elétrica, sem combustível que aciona o gerador. Elaborado por: Analisado por: Professor : Marcelo Gandra Falcone Alessandra Aparecida Vieira Marcelo Gandra Falcone QUANDO IMPRESSO CONSIDERAR PIRATARIA - CÓPIA NÃO AUTORIZADA
  • 161.
    UNINOVE Rev. B Engenharia deAvaliações e Perícias Manutenção Predial e Avaliação de Máquinas e Equipamentos 16/07/2011 Folha 161/424 Principais anomalias As anomalias mais comuns encontradas nas saídas de emergência são:  Portas que se abrem para o interior do edifício, onde o sentido correto é abrir para a saída da edificação;  Saída de emergência sem saída;  Saídas que na levam a uma área de descarga segura;  Saídas com menos de 1,20 m de largura, principalmente nas escadarias e antecâmaras;  Escadas enclausuradas à prova de fumaça sem ventilação exaustora que resista a quatro horas ininterruptamente;  Portas corta-fogo em mau estado de funcionamento das fechaduras;  Portas corta-fogo sem o selo da ABNT – lembrar que muitas vezes o selo está coberto por tinta;  Iluminação de emergência autônoma por bactérias vencidas e/ou descarregadas;  Iluminação de emergência por gerador, este sem combustível. Figura 59 – Ventilação - IBAPE –SP, PUJADAS, F.Z.A.; GOMIDE, T.L.F.; FAGUNDES, J.C.P. e OUTROS, Inspeção Predial –Check-Up Predial: Guia da Boa Prevenção. São Paulo: Leud, 2009. As portas das rotas de saída e aquelas das salas com capacidade acima de 50 pessoas e em comunicação com os acessos e descargas devem abrir no sentido do trânsito de saída Elaborado por: Analisado por: Professor : Marcelo Gandra Falcone Alessandra Aparecida Vieira Marcelo Gandra Falcone QUANDO IMPRESSO CONSIDERAR PIRATARIA - CÓPIA NÃO AUTORIZADA
  • 162.
    UNINOVE Rev. B Engenharia deAvaliações e Perícias Manutenção Predial e Avaliação de Máquinas e Equipamentos 16/07/2011 Folha 162/424 Recomendações e orientações técnicas Para um melhor controle e segurança:  Toda saída de emergência deve ser inspecionada rotineiramente, ou mudar o layout;  Toda iluminação e sinalização devem ser inspecionadas e testadas, de acordo com recomendações dos fabricantes e/ou utilização;  O conjunto porta-fogo e o piso ao redor não deve ser lavado com água ou qualquer produto químico; a limpeza deve ser feita com pano úmido em água e em seguida utilizado um pano seco para a remoção, a fim de preservar o aço e a pintura que compõem o conjunto;  Todas as portas corta-fogo devem ser inspecionadas, aplicando óleo lubrificante nas dobradiças e maçanetas para garantia o seu perfeito funcionamento;  O sistema de trava eletrônica deve ser revisado rotineiramente. Itens a verificar:  Lotação das Edificações:  Pela NBR 9077  A população é calculada na proporção de 0,50 metros linear por pessoa, quando sentada, ou por cadeira móvel existente.  A densidade para público sentado, para fins de cálculo é de 4 pessoas por metro quadrado (1 pessoa/ 0,25 m²).  No caso de camarotes e outros setores que não possuam cadeiras fixas a densidade para fins de cálculo é de 4 pessoas por m² da área bruta.  Pela IT 12  A população é calculada na proporção de 0,50 metros linear por pessoa, quando sentada, ou por cadeira móvel existente.  A densidade para público sentado, para fins de cálculo é de 4 pessoas por metro quadrado (1 pessoa/ 0,25 m²).  No caso de camarotes e outros setores que não possuam cadeiras fixas a densidade para fins de cálculo é de 4 pessoas por m² da área bruta. Pelo COE : Tabela para cálculo de Lotação: Setor para público em pé: 0,40 Setor para público sentado: 1,00 Atividades não específicas ou administrativas: 7,00 Elaborado por: Analisado por: Professor : Marcelo Gandra Falcone Alessandra Aparecida Vieira Marcelo Gandra Falcone QUANDO IMPRESSO CONSIDERAR PIRATARIA - CÓPIA NÃO AUTORIZADA
  • 163.
    UNINOVE Rev. B Engenharia deAvaliações e Perícias Manutenção Predial e Avaliação de Máquinas e Equipamentos 16/07/2011 Folha 163/424 Elaborado por: Analisado por: Professor : Marcelo Gandra Falcone Alessandra Aparecida Vieira Marcelo Gandra Falcone QUANDO IMPRESSO CONSIDERAR PIRATARIA - CÓPIA NÃO AUTORIZADA
  • 164.
    UNINOVE Engenharia de Avaliaçõese Perícias Manutenção Predial e Avaliação de Máquinas e Equipamentos  Rev. B 16/07/2011 Folha 164/424 Saídas com dimensionamento de acordo com Anexo 17 da Lei 11.228/1992 e Decreto 32.329, ou NBR 9077 ou IT 12 do Corpo de Bombeiros ou Portaria 014/Sehab-G/96. Para a NBR 9077 diz para unidade de passagem = 0,55metros : Portaria 014 para Locais Abertos temos : população C= 2,5 pessoas/m² e o tempo de escoamento T = 6 mins e V = 20m/min e N dado em metros direto. N = P / (C x T x V) Para a IT 12 temos: para os bombeiros a população de pé pode ser de até C = 4 pessoas / m² e o tempo de escoamento T = 12 min para uma velocidade V = 20m/min. N = P / (C x T x V) Para Locais fechados e cobertos usar o COE: Os espaços de circulação coletiva, ou vias de escoamento, serão constituídos por módulos de 0,30m (trinta centímetros) adequados ao escoamento de 30 (trinta) pessoas por módulo, respeitada a largura mínima de 1,20m (um metro e vinte centímetros) para os espaços que vierem ser construídos. De acordo com suas características e dimensionamento, os espaços de circulação existentes serão adequados ao escoamento da população conforme tabela seguinte: Elaborado por: Analisado por: Professor : Marcelo Gandra Falcone Alessandra Aparecida Vieira Marcelo Gandra Falcone QUANDO IMPRESSO CONSIDERAR PIRATARIA - CÓPIA NÃO AUTORIZADA
  • 165.
    UNINOVE Rev. B Engenharia deAvaliações e Perícias Manutenção Predial e Avaliação de Máquinas e Equipamentos 16/07/2011 Folha 165/424 Cada via de escoamento horizontal de um andar da edificação – corredor será dimensionada em razão da contribuição da lotação corrigida "Lc" dos ambientes e setores do andar, não podendo haver diminuição de sua largura no sentido da saída. A via de escoamento vertical, escada ou rampa, será dimensionada em razão do andar que detiver a maior lotação corrigida "Lc", apurada dentre o conjunto de andares que venham a utilizar esta via de escoamento. A via de escoamento vertical poderá ter dimensão variável, proporcional à lotação corrigida "Lc" de cada andar desde que, no sentido de saída, não haja diminuição de sua largura. Para as rampas descendentes no sentido do escoamento, poderá haver decréscimo de 2% (dois por cento) da largura calculada e para as ascendentes no sentido do escoamento, deverá haver acréscimo de 10% (dez por cento) da largura calculada.  As escadas Em qualquer edificação, os pavimentos sem saída em nível para o espaço livre exterior deverão ser dotados de escadas, enclausuradas ou não, as quais devem: a) quando enclausuradas, ser constituídas com material incombustível; b) quando não enclausuradas, além da incombustibilidade, oferecer nos elementos estruturais resistência ao fogo conforme Instrução Técnica CB-08 (Segurança Estrutural na Edificação); c) ter os pisos dos degraus e patamares revestidos com materiais resistentes à propagação superficial de chama, isto é, com índice “A” da ABNT NBR 9442; Elaborado por: Analisado por: Professor : Marcelo Gandra Falcone Alessandra Aparecida Vieira Marcelo Gandra Falcone QUANDO IMPRESSO CONSIDERAR PIRATARIA - CÓPIA NÃO AUTORIZADA
  • 166.
    UNINOVE Rev. B Engenharia deAvaliações e Perícias Manutenção Predial e Avaliação de Máquinas e Equipamentos 16/07/2011 Folha 166/424 e) ser dotadas de corrimãos; f) atender a todos os pavimentos, acima e abaixo da descarga, mas terminando obrigatoriamente no piso desta, não podendo ter comunicação direta com outro lanço na mesma prumada; g) ter os pisos com condições antiderrapantes, e que permaneçam antiderrapantes com o uso; Dimensionamento de degraus e patamares. Os degraus devem: a) ter altura h (ver figura 3) compreendida entre 16,0 cm e 18,0 cm, com tolerância de 0,05 cm; b) ter largura b (ver figura 3) dimensionada pela fórmula de Blondel: 63 cm <= (2h+b) >= 64 cm c) ser balanceados quando o lanço da escada for curvo (escada em leque) ou em espiral, quando se tratar de escadas não destinadas a saídas de emergências; d) ter, num mesmo lanço, larguras e alturas iguais e, em lanços sucessivos de uma mesma escada, diferenças entre as alturas de degraus de, no máximo, 5 mm; e) ter bocel (nariz) de 1,5 cm, no mínimo, ou, quando este inexistir, balanço da quina do degrau sobre o imediatamente inferior com este mesmo valor mínimo (ver figura 3). Figura 59 –Escadas- IBAPE –SP, PUJADAS, F.Z.A.; GOMIDE, T.L.F.; FAGUNDES, J.C.P. e OUTROS, Inspeção Predial – Check-Up Predial: Guia da Boa Prevenção. São Paulo: Leud, 2009. Elaborado por: Analisado por: Professor : Marcelo Gandra Falcone Alessandra Aparecida Vieira Marcelo Gandra Falcone QUANDO IMPRESSO CONSIDERAR PIRATARIA - CÓPIA NÃO AUTORIZADA
  • 167.
    UNINOVE Rev. B Engenharia deAvaliações e Perícias Manutenção Predial e Avaliação de Máquinas e Equipamentos 16/07/2011 Folha 167/424 Figura 60 – Escadas- IBAPE –SP, PUJADAS, F.Z.A.; GOMIDE, T.L.F.; FAGUNDES, J.C.P. e OUTROS, Inspeção Predial – Check-Up Predial: Guia da Boa Prevenção. São Paulo: Leud, 2009. O lanço mínimo deve ser de três degraus e o lanço máximo, entre dois patamares consecutivos, não deve ultrapassar 3,70 m de altura. O comprimento dos patamares deve ser (ver figura 5) : a) dado pela fórmula: p = (2h + b)n + b em que o n é um número inteiro (1, 2 ou 3), quando se tratar de escada reta, medido na direção do trânsito; b) no mínimo, igual à largura da escada quando há mudança de direção da escada sem degraus ingrauxidos, não se aplicando neste caso, a fórmula anterior. Em ambos os lados de vão da porta, deve haver patamares com comprimento mínimo igual à largura da folha da porta. Figura 61 –Escadas- IBAPE –SP, PUJADAS, F.Z.A.; GOMIDE, T.L.F.; FAGUNDES, J.C.P. e OUTROS, Inspeção Predial – Check-Up Predial: Guia da Boa Prevenção. São Paulo: Leud, 2009. Elaborado por: Analisado por: Professor : Marcelo Gandra Falcone Alessandra Aparecida Vieira Marcelo Gandra Falcone QUANDO IMPRESSO CONSIDERAR PIRATARIA - CÓPIA NÃO AUTORIZADA
  • 168.
    UNINOVE Rev. B Engenharia deAvaliações e Perícias Manutenção Predial e Avaliação de Máquinas e Equipamentos 16/07/2011 Folha 168/424 Figura 62 –Escadas- IBAPE –SP, PUJADAS, F.Z.A.; GOMIDE, T.L.F.; FAGUNDES, J.C.P. e OUTROS, Inspeção Predial – Check-Up Predial: Guia da Boa Prevenção. São Paulo: Leud, 2009. Figura 63 –Escadas- IBAPE –SP, PUJADAS, F.Z.A.; GOMIDE, T.L.F.; FAGUNDES, J.C.P. e OUTROS, Inspeção Predial – Check-Up Predial: Guia da Boa Prevenção. São Paulo: Leud, 2009. Elaborado por: Analisado por: Professor : Marcelo Gandra Falcone Alessandra Aparecida Vieira Marcelo Gandra Falcone QUANDO IMPRESSO CONSIDERAR PIRATARIA - CÓPIA NÃO AUTORIZADA
  • 169.
    UNINOVE Rev. B Engenharia deAvaliações e Perícias Manutenção Predial e Avaliação de Máquinas e Equipamentos 16/07/2011 Folha 169/424 Figura 64 –Escadas- IBAPE –SP, PUJADAS, F.Z.A.; GOMIDE, T.L.F.; FAGUNDES, J.C.P. e OUTROS, Inspeção Predial – Check-Up Predial: Guia da Boa Prevenção. São Paulo: Leud, 2009. Figura 65 –Escadas- IBAPE –SP, PUJADAS, F.Z.A.; GOMIDE, T.L.F.; FAGUNDES, J.C.P. e OUTROS, Inspeção Predial – Check-Up Predial: Guia da Boa Prevenção. São Paulo: Leud, 2009. Elaborado por: Analisado por: Professor : Marcelo Gandra Falcone Alessandra Aparecida Vieira Marcelo Gandra Falcone QUANDO IMPRESSO CONSIDERAR PIRATARIA - CÓPIA NÃO AUTORIZADA
  • 170.
    UNINOVE Engenharia de Avaliaçõese Perícias Manutenção Predial e Avaliação de Máquinas e Equipamentos  Rev. B 16/07/2011 Folha 170/424 devem ser guarnecidas por corrimãos, conforme a NBR 9.077. As escadas deverão dispor de corrimão, instalado entre 0,80 m ( oitenta centímetros ) e 1,00 m ( um metro ) de altura conforme as seguintes especificações: a) apenas de um lado, para escada com largura inferior a 1,20 m ( um metro e vinte centímetros); b) de ambos os lados, para escada com largura igual ou superior a 1,20 m ( um metro e vinte centímetros ); c) intermediário quando a largura for igual ou superior a 2,40 m ( dois metros e quarenta centímetros ) de forma a garantir largura mínima de 1,20 m ( um metro e vinte centímetros ) para cada lance;  As escadas privativas e as escadas coletivas em curva não serão consideradas para o cálculo do escoamento da população.  As escadas coletivas deverão ser descontínuas a partir do pavimento correspondente à soleira de ingresso da edificação, de forma a orientar o usuário ao exterior.  As edificações devem estar providas de Guarda-Corpos conforme NBR 14718 e Corrimãos conforme NBR 9050/04: Guarda-corpos e balaustradas Toda saída de emergência, corredores, balcões, terraços, mezaninos, galerias, patamares, escadas, rampas e outros, deve ser protegida de ambos os lados por paredes ou guardas (guarda-corpos) continuas, sempre que houver qualquer desnível maior de 19 cm, para evitar quedas. A altura das guardas, internamente, deve ser, no mínimo, de 1,05 m ao longo dos patamares, corredores, mezaninos, podendo ser reduzida para até 92cm nas escadas internas, quando medida verticalmente do topo da guarda a uma linha que una as pontas dos bocéis ou quinas dos degraus. A altura das guardas em escadas externas, de seus patamares, de balcões e assemelhados, deve ser de, no mínimo, 1,30 m, medido como especificado em Corrimãos Os corrimãos deverão ser adotados em ambos os lados das escadas ou rampas, devendo estar situados entre 80 cm e 92 cm acima do nível do piso, sendo em escadas, esta medida tomada verticalmente da forma especificada em Figura 10: Elaborado por: Analisado por: Professor : Marcelo Gandra Falcone Alessandra Aparecida Vieira Marcelo Gandra Falcone QUANDO IMPRESSO CONSIDERAR PIRATARIA - CÓPIA NÃO AUTORIZADA
  • 171.
    UNINOVE Rev. B Engenharia deAvaliações e Perícias Manutenção Predial e Avaliação de Máquinas e Equipamentos 16/07/2011 Folha 171/424 Figura 66 –Escadas- IBAPE –SP, PUJADAS, F.Z.A.; GOMIDE, T.L.F.; FAGUNDES, J.C.P. e OUTROS, Inspeção Predial – Check-Up Predial: Guia da Boa Prevenção. São Paulo: Leud, 2009. Uma escada pode ter corrimãos em diversas alturas, além do corrimão principal na altura normal exigida; em escolas, jardins-de-infância e assemelhados, se for o caso, deve haver corrimãos nas alturas indicadas para os respectivos usuários, além do corrimão principal. Os corrimãos devem ser projetados de forma a poderem ser agarrados fácil e confortavelmente, permitindo um contínuo deslocamento da mão ao longo de toda a sua extensão, sem encontrar quaisquer obstruções, arestas ou soluções de continuidade. No caso de secção circular, seu diâmetro varia entre 38 mm e 65 mm (ver figura 11). Os corrimãos devem estar afastados 40 mm no mínimo, das paredes ou guardas às quais forem fixados. Não são aceitáveis, em saídas de emergência, corrimãos constituídos por elementos com arestas vivas, tábuas largas e outros (ver figura 11). Figura 67 –Escadas- IBAPE –SP, PUJADAS, F.Z.A.; GOMIDE, T.L.F.; FAGUNDES, J.C.P. e OUTROS, Inspeção Predial – Check-Up Predial: Guia da Boa Prevenção. São Paulo: Leud, 2009. Elaborado por: Analisado por: Professor : Marcelo Gandra Falcone Alessandra Aparecida Vieira Marcelo Gandra Falcone QUANDO IMPRESSO CONSIDERAR PIRATARIA - CÓPIA NÃO AUTORIZADA
  • 172.
    UNINOVE Engenharia de Avaliaçõese Perícias Manutenção Predial e Avaliação de Máquinas e Equipamentos  Rev. B 16/07/2011 Folha 172/424 Rampas: O uso de rampas é obrigatório nos seguintes casos: a) para unir dois pavimentos de diferentes níveis em acesso a áreas de refúgio; b) na descarga e acesso de elevadores de emergência; c) sempre que a altura a vencer for inferior a 0,48 m, já que são vedados lanços de escadas com menos de três degraus; d) quando a altura a ser vencida não permitir o dimensionamento equilibrado dos degraus de uma escada; e) para unir o nível externo ao nível do saguão térreo das edificações em que houver usuários de cadeiras de rodas (ver NBR-9050).        As rampas não podem terminar em degraus ou soleiras, devendo ser precedidas e sucedidas sempre por patamares planos. Os patamares das rampas devem ser sempre em nível, tendo comprimento mínimo de 1,20 m, medidos na direção do trânsito, sendo obrigatórios sempre que houver mudança de direção ou quando a altura a ser vencida ultrapassar 3,70m. As rampas podem suceder um lanço de escada, no sentido descendente de saída, mas não podem precedê-lo. Não é permitida a colocação de portas em rampas; estas devem estar situadas sempre em patamares planos, com largura não-inferior à da folha da porta de cada lado do vão. O piso das rampas deve ser antiderrapante. As rampas terão inclinação máxima de 10 % ( dez por cento ) quando forem meio de escoamento vertical da edificação, sendo que sempre que a inclinação exceder a 6 % ( seis por cento ) o piso deverá ser revestido com material anti-derrapante. Para acesso de pessoas portadoras de deficiências físicas, o imóvel deverá ser obrigatoriamente, dotado de rampa com largura mínima de 1,20 m (um metro e vinte centímetros) e a inclinação não pode exceder 8,33% para vencer desnível entre o logradouro público ou área externa e o piso correspondente à soleira de ingresso às edificações destinadas a: o local de reunião com mais de 100 (cem pessoas); o qualquer outro uso com mais de 600 (seiscentas) pessoas.  Pela NBR 9077, a largura mínima de uma rampa para ser considerada saída de emergência é de 1,65m, correspondente a três unidades de passagem de 55 cm e 2,20 m de largura, correspondente a quatro unidades de passagem de 55 cm, para as rampas, acessos às rampas (corredores e passagens) e descarga das rampas. Elaborado por: Analisado por: Professor : Marcelo Gandra Falcone Alessandra Aparecida Vieira Marcelo Gandra Falcone QUANDO IMPRESSO CONSIDERAR PIRATARIA - CÓPIA NÃO AUTORIZADA
  • 173.
    UNINOVE Engenharia de Avaliaçõese Perícias Manutenção Predial e Avaliação de Máquinas e Equipamentos  Rev. B 16/07/2011 Folha 173/424 PORTAS As portas das rotas de saída e aquelas das salas com capacidade acima de 50 pessoas e em comunicação com os acessos e descargas devem abrir no sentido do trânsito de saída (ver figura 3333). As larguras, vão livre ou “luz” das portas, comuns ou corta-fogo, utilizadas nas rotas de saída, deve ser dimensionada como estabelecido em 5.4, admitindo se uma redução no vão de luz, isto é, no livre, das portas em até 75 mm de cada (golas), para o contramarco e alizares. As portas devem ter as seguintes dimensões mínimas de luz: a) 80 cm, valendo por uma unidade de passagem; b) 90 cm, valendo por duas unidades de passagem; c) 1,50 m, em duas folhas, valendo por três unidades de passagem. Notas: a) Porta com dimensão maior ou igual a 2,20 m, exige-se coluna central. b) As portas das antecâmaras das escadas à prova de fumaça e das paredes corta-fogo devem ser do tipo corta-fogo (PCF), obedecendo a NBR 11742, no que lhe for aplicável. c) As portas das antecâmaras, escadas e outros devem ser providas de dispositivos mecânicos e automáticos, de modo a permanecerem fechadas, mas destrancadas, no sentido do fluxo de saída, sendo admissível que se mantenham abertas, desde que disponham de dispositivo de fechamento, quando necessário. d) Se as portas dividem corredores que constituem rotas de saída, devem:  ter condições de reter a fumaça e ser providas de visor transparente de área mínima de 0,07 m², com altura mínima de 25 cm;  abrir no sentido do fluxo de saída; Elaborado por: Analisado por: Professor : Marcelo Gandra Falcone Alessandra Aparecida Vieira Marcelo Gandra Falcone QUANDO IMPRESSO CONSIDERAR PIRATARIA - CÓPIA NÃO AUTORIZADA
  • 174.
    UNINOVE Engenharia de Avaliaçõese Perícias Manutenção Predial e Avaliação de Máquinas e Equipamentos   Rev. B 16/07/2011 Folha 174/424 abrir nos dois sentidos, caso o corredor possibilite saída nos dois sentidos. Em salas com capacidade acima de 100 pessoas e nas rotas de saída dos locais de reunião com capacidade acima de 100 pessoas, as portas de comunicação com os acessos, escadas e descarga devem ser dotadas de ferragem do tipo antipânico, conforme NBR 11785. Portas "Corta Fogo" e Barras "Anti-Pânico":  Portas "Corta Fogo” NBR 11742 e Barras Anti-Pânico NBR 11785.  Verificar regulagem das molas e dobradiças  Devem ser mantidas desobstruídas e abertas.  Erros comuns: a) Portas corta-fogo instaladas acima de 1cm da soleira da porta permitindo que volume maior de fumaça a atravesse; b) Portas corta-fogo mantidas abertas por calços, vasos ou tijolos; c) Portas corta-fogo que não fecham automaticamente com a passagem das pessoas; d) Portas corta-fogo sem patamares anterior e posterior a ela; e) Portas corta-fogo sem placa de marca de conformidade; f) Venezianas de entrada e saída de ar e fumaça dos dutos de ventilação com elementos que não garantem a área mínima de ventilação de 0,84m²; g) Instalação de fiação de antenas, prumadas elétricas e até tubulações de gás; h) Obstrução por vasos, sacos de lixo, materiais de construção, móveis, etc; i) Fixação de corrimãos com buchas e parafusos nas paredes, que não garantem um mínimo de resistência ao arrancamento; j) Escada de emergência que não termina no térreo (descarga), mas continua até o subsolo; k) Corrosão na parte inferior da porta, furando a mesma ou criando abertura superior a 1cm. RECOMENDAÇÕES:  O conjunto porta corta fogo e o piso ao redor não devem ser lavados com água ou qualquer produto químico, a limpeza deve ser feita com pano úmido em água e em seguida utilizado um pano seco para a remoção, a fim de preservar o aço e a pintura que compõe o conjunto.  Todas as PCF – Portas corta fogo deve ser inspecionada a cada pelo menos 3 meses, aplicando óleo lubrificante nas dobradiças e maçanetas para garantir o seu perfeito funcionamento.  Verficação diária de obstrução e das condições de fechamento (manter fechadas) Elaborado por: Analisado por: Professor : Marcelo Gandra Falcone Alessandra Aparecida Vieira Marcelo Gandra Falcone QUANDO IMPRESSO CONSIDERAR PIRATARIA - CÓPIA NÃO AUTORIZADA
  • 175.
    UNINOVE Engenharia de Avaliaçõese Perícias Manutenção Predial e Avaliação de Máquinas e Equipamentos        Rev. B 16/07/2011 Folha 175/424 Sistema de Isolamento de Risco: Verificar isolamento do pavimento térreo e do subsolos. E entre pavimentos e estacionamentos. Serão toleradas instalações elétricas impróprias o espaço protegido, desde que satisfeitas as exigências da NBR 5410, assegurando proteção adequada. As escadas protegidas, em todos os pavimentos exceto no(s) pavimento(s) de saída, somente poderão ter comunicação com outros recintos interiores à edificação através de vestíbulos/antecâmaras também protegidos. Os vestíbulos/antecâmaras deverão ter suas dimensões atendendo à proporção de 1:1,5, sendo a menor dimensão maior ou igual à largura da escada. Os vestíbulos/antecâmaras deverão ter ventilação obrigatória, de modo a protegê-los da entrada de gases e fumaça, através de uma das seguintes condições: a) ventilação natural, através de abertura voltada para o exterior, com área mínima igual a 50% (cinqüenta por cento) da superfície de seu lado maior, distanciada no mínimo 5,00m (cinco metros) de outra abertura da mesma edificação; b) ventilação forçada artificial, com funcionamento automático no caso de falta de energia, dimensionada de acordo com as N.T.O.; c) ventilação natural, através de abertura com o mínimo de 0,70m2 (setenta decímetros quadrados) para duto de ventilação, que deverá ter: d) área mínima "Av" obtida pela fórmula: Av = 0,03m x Hd, respeitada a área mínima de 1,00m2 (um metro quadrado) onde "Hd" é a altura total do duto, não sendo admitido o escalonamento; seção transversal capaz de conter um círculo de 0,70m (setenta centímetros) de diâmetro; e) tomada de ar exterior em sua base, diretamente para andar aberto ou para duto horizontal com dimensões não inferiores à metade das exigidas para o duto vertical, e saída de ar situada 1,00m (um metro) no mínimo acima da cobertura, contígua ao duto; f) paredes resistentes a duas horas de fogo (RF-120). São considerados como espaço de circulação protegido, os seguintes tipos de escadas: a) Escada aberta para o exterior, limitada à altura máxima de 27,00m (vinte e sete metros) sem obrigatoriedade de comunicação através de vestíbulo/antecâmara protegidos, desde que: possua ventilação natural através de abertura em, pelo menos, 50% (cinqüenta por cento) de seu perímetro, com altura igual ou superior à metade do seu pé-direito; as aberturas estejam distanciadas, no mínimo, 5,00m (cinco metros) de outra abertura da mesma edificação; a face aberta da escada esteja distanciada, no mínimo, 5,00m (cinco metros) de Elaborado por: Analisado por: Professor : Marcelo Gandra Falcone Alessandra Aparecida Vieira Marcelo Gandra Falcone QUANDO IMPRESSO CONSIDERAR PIRATARIA - CÓPIA NÃO AUTORIZADA
  • 176.
    UNINOVE Engenharia de Avaliaçõese Perícias Manutenção Predial e Avaliação de Máquinas e Equipamentos b) c) d) e) Rev. B 16/07/2011 Folha 176/424 outra edificação no mesmo lote e 3,00m (três metros) das divisas do imóvel. Escada pressurizada, dimensionada de acordo com as NTO, garantido o seu funcionamento automático no caso de falta de energia, comunicando-se através de vestíbulo/antecâmara protegidos; Escada Fechada sem iluminação natural, comunicando-se através de vestíbulo/antecâmara protegidos; Escada Fechada, com iluminação natural através de abertura para o exterior com área máxima de 0,50m² (cinqüenta decímetros quadrados) distanciada, no mínimo, 3,00m (três metros) de outra abertura da edificação e das divisas do imóvel, comunicando-se através de vestíbulo/antecâmara protegidos. Escadas "protegida", "enclausurada" e "à prova de fumaça", conforme NTO - NBR 9077, de acordo com os limites fixados na tabela 2 desta Norma. Obs: As escadas podem ser eventualmente substituídas por: a) interligação entre blocos no mesmo lote ou entre edificações vizinhas, por passarela e/ou passadiço protegido,; b) áreas de refúgio, delimitadas por elementos construtivos resistentes ao fogo RF-120 (parede e piso) e RF-90 (portas) situadas, no mínimo, a cada 4 (quatro) andares, com capacidade para abrigar 50% (cinqüenta por cento) da lotação total dos andares superiores, na proporção de 0,50m² (cinqüenta decímetros quadrados) por pessoa, interligadas à escada protegida.  A edificação, exceto a de uso residencial, deverá ter seus espaços compartimentados em Setores de Incêndio, com área menor ou igual a 2.000m² (dois mil metros quadrados) delimitados por elementos RF-120 (parede e piso) e RF-60 (portas); serão subdivididos em subsetores com área menor ou igual a 500m² (quinhentos metros quadrados) delimitados por elementos RF-60 (paredes e pisos) e RF-30 (portas) quando ultrapassarem os limites de altura ou população, estabelecidos de acordo com sua destinação, conforme os seguintes parâmetros: a) tratamento de saúde, comércio e educação, com altura superior a 15,00m (quinze metros); b) locais de reunião, com lotação superior a 700 (setecentas) pessoas; c) outros, com altura superior a 27,00m (vinte e sete metros). OBS: A compartimentação prevista neste item poderá ser substituída pela instalação de chuveiros automáticos em toda a área. Elaborado por: Analisado por: Professor : Marcelo Gandra Falcone Alessandra Aparecida Vieira Marcelo Gandra Falcone QUANDO IMPRESSO CONSIDERAR PIRATARIA - CÓPIA NÃO AUTORIZADA
  • 177.
    UNINOVE Engenharia de Avaliaçõese Perícias Manutenção Predial e Avaliação de Máquinas e Equipamentos  Rev. B 16/07/2011 Folha 177/424 Plano de emergência Todo edifício comercial ou residencial deve ter um plano de emergência para abandono do prédio em caso de incêndio. Um plano de emergência deve conter:  Procedimentos do supervisor;  Procedimentos da brigada de incêndio;  Procedimentos dos ocupantes do prédio;  Planta do edifício;  Localização do equipamento de combate a incêndio;  Localização das rotas de fuga;  Ponto de reunião fora do edifício;  A formação da brigada de incêndio é obrigatória, segundo determinação do Corpo de Bombeiros;  Ela deve ser composta por funcionários e usuários voluntários da edificação, que deverão passar por treinamentos periódicos. Quando o plano estiver pronto, providenciar:  Comunicação do conteúdo do plano a todos os ocupantes de edifício;  Sinalização das instalações (saídas, extintores, hidrantes etc.);  Treinamento de abandono do edifício; um bombeiro ou profissional habilitado poderá auxiliar nessa tarefa.      Abandono do prédio em chamas O abandono de um edifício em chamas deve ser feito pelas escadas, com calma, sem afobamentos; Nunca use o elevador para sair de um prédio onde há um incêndio; Se um incêndio ocorrer em seu escritório ou apartamento, saia imediatamente. Muitas pessoas morrem por não acreditarem que um incêndio pode se alastrar com rapidez. Combate? Se você ficar preso em meio à fumaça, respire pelo nariz, em rápidas inalações. Se possível, molhe um lenço e utilize-o como máscara improvisada. Procure rastejar para a saída, pois o ar é sempre melhor junto ao chão. Se possível, fique perto de uma janela, de onde poderá chamar por socorro; Elaborado por: Analisado por: Professor : Marcelo Gandra Falcone Alessandra Aparecida Vieira Marcelo Gandra Falcone QUANDO IMPRESSO CONSIDERAR PIRATARIA - CÓPIA NÃO AUTORIZADA
  • 178.
    UNINOVE Engenharia de Avaliaçõese Perícias Manutenção Predial e Avaliação de Máquinas e Equipamentos         Rev. B 16/07/2011 Folha 178/424 Use as escadas, nunca o elevador. Um incêndio razoável pode determinar o corte de energia para os elevadores. Feche todas as portas que ficarem atrás de você, assim retardará a propagação do fogo; Se você ficar preso em uma sala cheia de fumaça, fique junto ao piso, onde o ar é sempre melhor. Se possível, fique perto de uma janela, de onde poderá chamar por socorro. Repetitivo eliminar; Toque a porta com o dorso da sua mão. Se estiver quente, não abra. Se estiver fria, faça este teste: abra vagarosamente e fique atrás da porta, se sentir calor ou pressão vindo por meio da abertura, mantenha-a fechada; Se você não puder sair, mantenha-se atrás de uma porta fechada. Qualquer porta serve como couraça.Procure um lugar perto de janelas, e abra-as em cima e embaixo. Calor e fumaça devem sair por cima. Você poderá respirar pela abertura inferior; Procure conhecer o equipamento de combate a incêndio para utilizá-lo com eficiência em caso de emergência; Um prédio pode lhe dar várias opções de salvamento. Conheça-as previamente. NÃO salte do prédio. Muitas pessoas morrem sem imaginar que o socorro pode chegar em poucos minutos; Se houver pânico na saída principal, mantenha-se afastado da multidão. Procure outra saída. Uma vez que você tenha conseguido escapar, NÃO RETORNE; Chame o Corpo de Bombeiros imediatamente. 9.10.4) Materiais Combustíveis:    O material empregado na decoração dos ambientes e aquele armazenado em função da própria utilização da edificação, constituirão fator agravante de risco se obstruírem os espaços de circulação ou reduzirem o fluxo de pessoas. Ver também Decreto estadual 46.076 e NR 8 Ficam classificados os principais materiais comumente utilizados nas edificações, conforme dispõe o item 12.5.3 do COE, nas classes I, II, III e IV, de acordo com a listagem da Seção 12.E, do ANEXO 12 do Decreto 32.329/92. Para formulação das exigências relativas à segurança de uso admitir-se-ão as seguintes equivalências entre quantidades, definidas em peso, de materiais incluídos nas diferentes classes: 1kg da classe III, eqüivale a 10kg da classe II que eqüivale a 100kg da classe I. Elaborado por: Analisado por: Professor : Marcelo Gandra Falcone Alessandra Aparecida Vieira Marcelo Gandra Falcone QUANDO IMPRESSO CONSIDERAR PIRATARIA - CÓPIA NÃO AUTORIZADA
  • 179.
    UNINOVE Rev. B Engenharia deAvaliações e Perícias Manutenção Predial e Avaliação de Máquinas e Equipamentos 16/07/2011 Folha 179/424 9.10.5) Extintores: Descrição e finalidade do sistema: Considerado um dos principais agentes extintores, são aparelhos de acionamento manual, destinados a combater princípios de incêndio. Itens de Verificação     Verificar existência, instalação carga e selos de validade. Caso possível verificar adequação / inadequação pelo selo de indicação constante no cilindro. Os extintores de incêndio devem ser apropriados para o local a ser protegido Cada pavimento deve possuir, no mínimo, dois extintores, sendo um de água pressurizada e outro de pó químico seco ou gás carbônico. É permitida a instalação de duas unidades extintoras iguais de Pó ABC. Extintores obstruídos por qualquer material. Elaborado por: Analisado por: Professor : Marcelo Gandra Falcone Alessandra Aparecida Vieira Marcelo Gandra Falcone QUANDO IMPRESSO CONSIDERAR PIRATARIA - CÓPIA NÃO AUTORIZADA
  • 180.
    UNINOVE Engenharia de Avaliaçõese Perícias Manutenção Predial e Avaliação de Máquinas e Equipamentos           Rev. B 16/07/2011 Folha 180/424 Extintores sem o selo do INMETRO. Extintores sem o selo de recarga/ manutenção dentro das especificações da NBR 12962. Extintores sem a indicação de classe a que se emprega. Extintores sem sinalização, inclusive aqueles que estão em pilares. O acesso aos extintores não está obstruído. Os manômetros indicam pressurização (faixa verde ou amarela). O aparelho não apresenta vazamento. Os bicos e as válvulas da tampa estão desentupidos. Extintores instalados acima da altura permitida em norma de 1,60 m. Extintores de modo a atender decreto estadual do corpo de bombeiros: Informações técnicas conforme IT 21 do Corpo de Bombeiros: Classe de extintores: -Extintores de incêndio CLASSE A - ensaio de fogo em engradado de madeira -Extintores de incêndio CLASSE B - ensaio de fogo em líquido inflamável -Extintores de incêndio CLASSE C - ensaio de fogo em envolvendo instalações elétricas. Tipos de extintores: a) Carga d’água – Classe A b) Carga de espuma mecânica – Classe A/B c) Carga de Dióxido de Carbono (CO2) – B/C d) Carga de Pó BC – B/C e) Carga de Pó ABC – A/B/C f) Carga de compostos halogenados – B/C. Área de proteção máxima por unidade extintora: a) Risco baixo: 500 m2 b) Risco médio: 250 m2 c) Risco alto: 150 m2 Distancia. O operador não deve percorrer mais que: a) Risco baixo: 25 m b) Risco médio: 20 m c) Risco alto: 15 m RECOMENDAÇÕES:  Leve qualquer irregularidade ao conhecimento de um responsável, para que a situação seja rapidamente sanada.  A recarga do extintor deve ser feita: o Imediatamente após o uso. o Caso ele esteja despressurizado (manômetro na faixa vermelha). o Após ele ser submetido a teste hidrostático. Elaborado por: Analisado por: Professor : Marcelo Gandra Falcone Alessandra Aparecida Vieira Marcelo Gandra Falcone QUANDO IMPRESSO CONSIDERAR PIRATARIA - CÓPIA NÃO AUTORIZADA
  • 181.
    UNINOVE Rev. B Engenharia deAvaliações e Perícias Manutenção Predial e Avaliação de Máquinas e Equipamentos 16/07/2011 Folha 181/424 o Se o material estiver empedrado.  Mesmo que o extintor não tenha sido usado, a recarga deve ser feita: o Após um ano – tipo espuma. o Após três anos – tipo pó químico seco e água pressurizada. o Extintores de água pressurizada devem ser recarregados a pelo menos cada 5 anos ou utilização. o Semestralmente – se houver diferença de peso que exceda 5%, tipo pó químico seco e água pressurizada; 10%, tipo CO2.    Esvazie os extintores antes de enviá-los para recarga. Programe a recarga de forma a não deixar os locais desprotegidos. A época de recarga deve ser aproveitada para o treinamento das equipes de emergência. Devem ser recarregados os extintores em que forem constatados vazamentos, diminuição de carga ou pressão e vencimento de carga.   O Corpo de Bombeiros exige uma inspeção anual de todos os extintores, além de testes hidrostáticos a cada cinco anos, por firma habilitada. Figura 68 –Extintores - IBAPE –SP, PUJADAS, F.Z.A.; GOMIDE, T.L.F.; FAGUNDES, J.C.P. e OUTROS, Inspeção Predial – Check-Up Predial: Guia da Boa Prevenção. São Paulo: Leud, 2009. Elaborado por: Analisado por: Professor : Marcelo Gandra Falcone Alessandra Aparecida Vieira Marcelo Gandra Falcone QUANDO IMPRESSO CONSIDERAR PIRATARIA - CÓPIA NÃO AUTORIZADA
  • 182.
    UNINOVE Rev. B Engenharia deAvaliações e Perícias Manutenção Predial e Avaliação de Máquinas e Equipamentos 16/07/2011 Folha 182/424 Figura 69 –Uso de Extintores – Cartilha do CONTRU. Elaborado por: Analisado por: Professor : Marcelo Gandra Falcone Alessandra Aparecida Vieira Marcelo Gandra Falcone QUANDO IMPRESSO CONSIDERAR PIRATARIA - CÓPIA NÃO AUTORIZADA
  • 183.
    UNINOVE Rev. B Engenharia deAvaliações e Perícias Manutenção Predial e Avaliação de Máquinas e Equipamentos 16/07/2011 Folha 183/424 9.10.5) Sistema de Hidrantes e Mangotes: Descrição e finalidade do sistema O sistema hidráulico de hidrantes é um tipo de proteção instalado em edifícios, destinado ao combate de incêndios. É composto de um reservatório de incêndio, bomba de recalque, tubulação, abrigo de mangueira e registro de recalque. Figura 70 – Hidrantes e Mangotinhos – Cartilha do Contru. Principais falhas As falhas mais comuns encontradas em hidrantes são:           A falta de conservação e sinalização das bombas de incêndio; Dispositivos de alarme e comando das bombas quebradas e/ou em mau estado de conservação; Mau estado de conservação das caixas de hidrantes, principalmente a abertura das portas, pois é comum estarem emperradas pela oxidação ou camada grossa de pintura; Mangueiras dos hidrantes enroladas inadequadamente, sem esguicho e chave de aperto (Falta de Chave Stortz); Caixas de hidrantes sem os vidros de visualização e proteção das mangueiras; Mangueiras furadas ou cortadas; Falta de mangueiras; Registro emperrado. Deve estar presente em construções com mais de 750 m² ou 12 metros de altura Os abrigos podem ser construídos de materiais metálicos, de madeira, de fibra, ou de vidro, podendo ser pintados em qualquer cor, desde que sinalizados com a palavra “ HIDRANTE”, além da sinalização dos equipamentos de proteção contra incêndios, constantes na IT n. 20 – “Sinalização de Emergência”. Elaborado por: Analisado por: Professor : Marcelo Gandra Falcone Alessandra Aparecida Vieira Marcelo Gandra Falcone QUANDO IMPRESSO CONSIDERAR PIRATARIA - CÓPIA NÃO AUTORIZADA
  • 184.
    UNINOVE Engenharia de Avaliaçõese Perícias Manutenção Predial e Avaliação de Máquinas e Equipamentos      Rev. B 16/07/2011 Folha 184/424 Fica isenta a instalação de hidrantes ou mangotinhos em edículas, mezaninos, escritórios em andar superior, porão e subsolo de até 200 m2 desde que o caminhamento de apenas uma mangueira de incêndio do hidrante ou mangotinho do pavimento mais próximo assegura sua proteção e o acesso aos locais citados não seja através de escadas enclausuradas. Fica isenta a instalação de hidrante ou de mangotinhos em zeladoria, casas de máquinas, barriletes,etc., localizadas nas aberturas do edifícios, com área inferior a 70 m2, desde que o caminhamento de apenas uma magueira de incêndio do hidrante ou mangotinho do pavimento inferior assegure sua proteção. Os hidrantes ou mangotinhos devem ser distribuídos de tal forma que qualquer ponto da área a ser protegida seja alcançado por um esguicho para os sistemas 1,2 e 5 e dois esguichos para o sistema 3 e 4, considerando-se o comprimento da(s) mangueira(s) e seu trajeto real. Edificações adaptadas: a) Os hidrantes ou mangotinhos devem ser distribuídos de tal forma que qualquer ponto da párea protegida possa ser alcançado por jato d’água, considerando-se o caminhamento de 45 m de mangueira para incêndio. b) São toleradas as instalações de hidrantes em posições centrais, afastadas até 10 m de portas, escadas, rampas e acessos aos pavimentos. As portas dos abrigos dos hidrantes: a) podem ser pintadas em outra cor, mesmo quando metálicas, combinando com a arquitetura e decoração do ambiente, desde que as mesmas estejam devidamente identificadas com o dístico “incêndio” – fundo vermelho com inscrição na cor branca ou amarela; b) podem possuir abertura no centro com área mínima de 0,04 m2, fechada com material transparente (vidro, acrílico, etc.), identificado com o dístico “incêndio” – fundo vermelho com inscrição na cor branca ou amarela. Principais anomalias As anomalias mais comuns encontradas em hidrantes são:        Divisórias instaladas impedindo o acesso aos hidrantes; Portas que se abrem e obstruem os hidrantes; Hidrantes instalados em espaços inadequados, como portas que não são abertas a 180º. Mangueiras acondicionadas em espiral, quando deveriam estar aduchadas; Falta de esguicho ou chave de mangueiras nos abrigos para hidrantes; Registro fechado na tubulação principal de alimentação; Instalações em PVC internas às edificações; Elaborado por: Analisado por: Professor : Marcelo Gandra Falcone Alessandra Aparecida Vieira Marcelo Gandra Falcone QUANDO IMPRESSO CONSIDERAR PIRATARIA - CÓPIA NÃO AUTORIZADA
  • 185.
    UNINOVE Engenharia de Avaliaçõese Perícias Manutenção Predial e Avaliação de Máquinas e Equipamentos    Rev. B 16/07/2011 Folha 185/424 Canalizações executadas sem correto ancoramento e sem solda apropriada nas junções; Obstrução ao acesso dos equipamentos; Registro de recalque em caixa sem drenagem, obstruído ou incompleto; Recomendações e orientações técnicas Para um melhor controle e prevenção no tocante ao equipamento e sua utilização, têm-se algumas orientações:       Toda mangueira deve ser inspecionada e ensaiada hidrostaticamente antes de ser colocada em uso; Toda mangueira de ser inspecionada de acordo com a periodicidade recomendada pelo fabricante; Para limpeza e lavagem das mangueiras, utilizar somente água potável e secá-las à sombra interna e externamente; O sistema deve ser dotado de alarme audiovisual, indicativo do uso de qualquer ponto de hidrante que é acionado; O sistema de hidrante de ser utilizado, preferencialmente, por duas pessoas, atentando para: retirar a mangueira, acoplar as adaptações da mangueira no esguicho e no registro do hidrante, utilizar a chave de mangueira, quando necessário, abrir o registro, ligar a bomba, iniciar o teste em forma de combate; A mangueira de ser dobrada em ziguezague, a fim de facilitar sua rápida utilização. Figura 71 – Hidrantes - IBAPE –SP, PUJADAS, F.Z.A.; GOMIDE, T.L.F.; FAGUNDES, J.C.P. e OUTROS, Inspeção Predial – Check-Up Predial: Guia da Boa Prevenção. São Paulo: Leud, 2009. Elaborado por: Analisado por: Professor : Marcelo Gandra Falcone Alessandra Aparecida Vieira Marcelo Gandra Falcone QUANDO IMPRESSO CONSIDERAR PIRATARIA - CÓPIA NÃO AUTORIZADA
  • 186.
    UNINOVE Rev. B Engenharia deAvaliações e Perícias Manutenção Predial e Avaliação de Máquinas e Equipamentos 16/07/2011 Folha 186/424 9.10.6 Sistemas de Instalações Fixas de Combate a Incêndios Descrição do Sistema: As instalações fixas de combate a incêndios destinam-se a detectar o início do fogo e resfriá-lo. Os tipos são:  Detector de fumaça.  Detector de temperatura.  Detector de chama.  Sprinklers: redes de pequenos chuveiros no teto dos ambientes.  Dilúvio: gera um nevoeiro d'água.  Cortina d'água: rede de pequenos chuveiros afixados no teto e alinhados para, quando acionados, formar uma cortina d'água.  Resfriamento: rede de pequenos chuveiros instalados ao redor e no topo de tanques de gás, petróleo, gasolina e álcool. Geralmente são usados em áreas industriais.  Halon: a partir de posições tomadas pelo Ministério da Saúde, o Corpo de Bombeiros NÃO tem recomendado a utilização desse sistema, uma vez que seu agente é composto por CFC, destruidor da camada de ozônio. Figura 72 Sensor misto Fumaça e Temperatura – Fotografia CONTRU 2010. Elaborado por: Analisado por: Professor : Marcelo Gandra Falcone Alessandra Aparecida Vieira Marcelo Gandra Falcone QUANDO IMPRESSO CONSIDERAR PIRATARIA - CÓPIA NÃO AUTORIZADA
  • 187.
    UNINOVE Rev. B Engenharia deAvaliações e Perícias Manutenção Predial e Avaliação de Máquinas e Equipamentos 16/07/2011 Folha 187/424 9.10.7 Sistema de Chuveiros Automáticos - Sprinkler Descrição e finalidade do sistema É um sistema de proteção contra incêndio, pelo método de resfriamento, destinado a projetar água em forma de chuva, integrado por rede de abastecimento, reservatório, elemento sensível e bombas. A instalação desse tipo de proteção será obrigatória quando não forem atendidos os limites estabelecidos para a compartimentação horizontal e vertical para a edificação, em função da altura, ocupação e área construída, não sendo necessária a sua instalação em unidades residenciais. Principais anomalias. Nos chuveiros automáticos, as anomalias mais comuns são:         Os fios elétricos de alimentação das bombas de recalque, quando dentro de área protegida pelos chuveiros automáticos, sem a devida proteção contra danos mecânicos e químicos, fogo e umidade; Sistema instalado inadequadamente, ou seja, sem finalidade; Alteração de ocupação da área de utilização, sem readequação do sistema de chuveiros automáticos. Tem que der certificados conforme as normas ABNT NBR 6135 e 6125 Os fundamentos da proteção contra incêndios das edificações com sprinklers estão baseados no princípio da descarga automática de água, com densidade suficiente para controlar ou extinguir os focos iniciais de incêndio A distribuição dos sprinklers deve ser por toda a área protegida; A interferência à descarga de água por obstruções deve ser mínima, de acordo com as normas; Os Sprinklers não podem, estar muito longe do telhado nem dentro de cubículos determindas pelas vigas. A escolha da localização em relação ao teto ou ao telhado deve ser bem estudada para se obter uma sensibilidade adequada para o acionamento, em função de acúmulo mais rápido de calor junto ao sprinkler; Principais falhas:    Detectores sujos e/ou pintados, sendo que os mesmos devem estar limpos e sem resíduos de sujeira, pois a temperatura nominal de funcionamento sofreria alterações; Chuveiros automáticos com área de atuação prejudicada por divisórias, materiais, luminárias, empilhamento de materiais etc.; Materiais como fios, encanamentos etc. amarrados nas tubulações do sistema. Elaborado por: Analisado por: Professor : Marcelo Gandra Falcone Alessandra Aparecida Vieira Marcelo Gandra Falcone QUANDO IMPRESSO CONSIDERAR PIRATARIA - CÓPIA NÃO AUTORIZADA
  • 188.
    UNINOVE Engenharia de Avaliaçõese Perícias Manutenção Predial e Avaliação de Máquinas e Equipamentos        Rev. B 16/07/2011 Folha 188/424 Os Sprinklers não podem apresentar marcar de ferramentas. Eles somente ser instalados com ferramentas específicas para a função, evitando desta forma danos ao equipamento; Os Sprinklers não podem ser pintados Não é permitido pendurar objetos nos sprinklers; Verificar se são realizados periodicamente checagem visual para verificar a integridade dos sprinklers ; Verificar se foram testados os componentes do sistema (bombas, válvulas, tubulações, ...) e a pressurização do sistema como um todo; Verificar a existência na edificação, em local adequado, uma pequena reserva de sprinklers para que, no momento em que a troca de uma ou mais peças forem necessárias, não haja necessidade de realizar uma busca urgente no mercado; Erros Comuns: a) Falta de chuveiros automáticos de reserva; b) Gongo hidráulico não funcionando; c) Chuveiros automáticos distantes do teto, sem coletor de calor; d) Falta de drenos e conexões remotas de teste do sistema; e) Falta de sinalização no registro de recalque; f) Falta de conexão de ensaio da bomba; g) Falta de canalização de retorno do recalque da bomba ao reservatório para evitar o aquecimento (6mm); h) Falta de pessoal treinado, embora uma equipe tenha sido declarada no projeto sem saberem que tinham sido indicados; Recomendações e orientações técnicas Para um melhor controle e segurança:   Todo edifício deve ter um estoque mínimo de detectores sobressalentes para a reposição imediata, caso necessário; Todo o sistema de chuveiros automáticos deve ser inspecionado de acordo com recomendações dos fabricantes ou utilização e/ou mudança de layout. Elaborado por: Analisado por: Professor : Marcelo Gandra Falcone Alessandra Aparecida Vieira Marcelo Gandra Falcone QUANDO IMPRESSO CONSIDERAR PIRATARIA - CÓPIA NÃO AUTORIZADA
  • 189.
    UNINOVE Rev. B Engenharia deAvaliações e Perícias Manutenção Predial e Avaliação de Máquinas e Equipamentos 16/07/2011 Folha 189/424 9.10.8 Sistema de Iluminação de Emergência: Descrição do Sistema A iluminação de emergência, que entra em funcionamento quando falta energia elétrica, pode ser alimentada por gerador ou bateria e acumuladores (nãoautomotiva). Principais Anomalias e Falhas:  Sistema de iluminação de emergência de acordo com NBR 10.898/99.  Nos locais de Reunião, as áreas comuns, por onde existam rotas de fuga, devem possuir iluminação de Balizamento, independente da rede geral, que atenda à NBR 10.898.  Os corredores, escadas, banheiros e áreas comuns por onde existam rotas de fuga devem possuir iluminação de emergência, independente da rede geral, que atenda à NBR 10.898.  Sistema de aclaramento (<= 3 lux) -> luz tênue mínima em platéias escuras.  Sistema de Balizamento (<= 5 lux) -> luz tênue mimina indicativa de rotas e saídas em platéias escuras.  Erros Comuns: a) Alguns pontos de luz ou todo o sistema desativado; b) Falta, parcial ou total, de solução nos acumuladores; c) Pontos de luz com luminosidade insuficiente para o local, decorrente de potência da central, fiação ou lâmpadas subdimensionadas; d) Não cumprimento da instalação de todos os pontos de luz que foram previstos no projeto aprovado; e) Instalação ou alteração de divisórias sem revisão do projeto; f) Substituição do fusível por pedaços de metal; papel laminado de cigarro e similares; Recomendaçôes e Orientaçôes  Faça constantemente a revisão dos pontos de iluminação.  A iluminação de emergência é obrigatória também nos elevadores.  Baterias As baterias devem ser instaladas acima do piso e afastadas da parede, em local seco, ventilado e sinalizado. Providencie a manutenção periódica das baterias. De acordo com as indicações do fabricante, devem ser verificados seus terminais (pólos) e a densidade do eletrólito. Figura 73 – Bloco autônomo desligado da tomada. Elaborado por: Analisado por: Professor : Marcelo Gandra Falcone Alessandra Aparecida Vieira Marcelo Gandra Falcone QUANDO IMPRESSO CONSIDERAR PIRATARIA - CÓPIA NÃO AUTORIZADA
  • 190.
    UNINOVE Rev. B Engenharia deAvaliações e Perícias Manutenção Predial e Avaliação de Máquinas e Equipamentos 16/07/2011 Folha 190/424 9.10.9 Sistema de Sinalização: Descrição Geral segundo a IT 20 do Corpo de Bombeiros da Policia Militar do Estado de São Paulo, NBR 13434:1995 – Sinalização de segurança contra incêndio e pânico – Formas, dimensões e cores – Padronização, NBR 13435:1995 – Sinalização de segurança contra incêndio e pânico – Procedimento e NBR 13437:1995 – Símbolos gráficos para sinalização contra incêndio e pânico – Simbologia Cores 1. Cores de sinalização - as cores de segurança e cores de contraste são apresentadas na Tabela abaixo: 2. Cores de segurança - a cor de segurança deve cobrir, no mínimo, 50% da área do símbolo, exceto no símbolo de proibição, onde este valor deve ser, no mínimo, de 35%. A essa cor é atribuída uma finalidade ou um significado específico de segurança. 3. Aplicação das cores de segurança: a) Vermelha - utilizada para símbolos de proibição, emergência, e identifi cação de equipamentos de combate a incêndio e alarme; b) Verde - utilizada para símbolos de orientação e salvamento; c) Preta - utilizadas para símbolos de alerta e sinais de perigo. 4. Cores de contraste - as cores de contraste são a branca ou amarela, conforme especifi cado na Tabela 3, para sinalização de proibição e alerta, respectivamente. Essas cores têm a finalidade de contrastar com a cor de segurança, de modo a fazer com que esta se sobressaia. 5. As cores de contraste devem ser fotoluminescentes, para a sinalização de orientação e salvamento e de equipamentos. Elaborado por: Analisado por: Professor : Marcelo Gandra Falcone Alessandra Aparecida Vieira Marcelo Gandra Falcone QUANDO IMPRESSO CONSIDERAR PIRATARIA - CÓPIA NÃO AUTORIZADA
  • 191.
    UNINOVE Rev. B Engenharia deAvaliações e Perícias Manutenção Predial e Avaliação de Máquinas e Equipamentos 16/07/2011 Folha 191/424 Formas geométricas e dimensões para a sinalização de emergência 1. Dimensões básicas da sinalização A > L2 2000 Onde: A = Área da placa, em m2 . L = Distância do observador à placa, em m (metros). Esta relação é válida para L < 50 m, sendo que deve ser observada a distância mínima de 4 m, conforme Tabela I 2. A Tabela 1 apresenta dimensõesvalores referenciais para algumas distâncias pré-definidas. 3. Formas da sinalização: a) Circular - utilizada para implantar símbolos de proibição e ação de comando (ver forma geométrica da Tabela 1); b) Triangular - utilizada para implantar símbolos de alerta (ver forma geométrica da Tabela 1); c) Quadrada e retangular - utilizadas para implantar símbolos de orientação, socorro, emergência, identificação de equipamentos utilizados no combate a incêndio, alarme e mensagens escritas (ver forma geométrica da Tabela 2). 4. Sinalização de proibição: a) Forma: circular; b) Cor de contraste: branca; c) Barra diametral e faixa circular (cor de segurança): vermelha; d) Cor do símbolo: preta; e) Margem (opcional): branca. 5. Sinalização de alerta: a) Forma: triangular; b) Cor do fundo (cor de contraste): amarela; c) Moldura: preta; d) Cor do símbolo (cor de segurança): preta; e) Margem (opcional): amarelo. 6. Sinalização de orientação e salvamento: a) Forma: quadrada ou retangular; b) Cor do fundo (cor de segurança): verde; c) Cor do símbolo (cor de contraste): fotoluminescente; d) Margem (opcional): fotoluminescente. 7. Sinalização de equipamentos: a) Forma: quadrada ou retangular; b) Cor de fundo (cor de segurança): vermelha; c) Cor do símbolo (cor de contraste): fotoluminescente; d) Margem (opcional): fotoluminescente. Elaborado por: Analisado por: Professor : Marcelo Gandra Falcone Alessandra Aparecida Vieira Marcelo Gandra Falcone QUANDO IMPRESSO CONSIDERAR PIRATARIA - CÓPIA NÃO AUTORIZADA
  • 192.
    UNINOVE Rev. B Engenharia deAvaliações e Perícias Manutenção Predial e Avaliação de Máquinas e Equipamentos 16/07/2011 Folha 192/424 Altura mínima das letras em placa de sinalização em função da distância de leitura 1 No caso de emprego de letras, elas devem ser grafadas obedecendo à relação: h > L / 125 Onde: h= Altura da letra, em metros. L= Distância do observador à placa, em metros. 2. A Tabela abaixo, apresenta valores de altura de letra para distâncias predefi nidas. Todas as palavras e sentenças devem apresentar letras em caixa alta, fonte Univers 65 ou Helvetica Bold. Elaborado por: Analisado por: Professor : Marcelo Gandra Falcone Alessandra Aparecida Vieira Marcelo Gandra Falcone QUANDO IMPRESSO CONSIDERAR PIRATARIA - CÓPIA NÃO AUTORIZADA
  • 193.
    UNINOVE Rev. B Engenharia deAvaliações e Perícias Manutenção Predial e Avaliação de Máquinas e Equipamentos 16/07/2011 Folha 193/424 4. Simbologia para a Sinalização de Emergência As formas geométricas e as cores de segurança e de contraste devem ser utilizadas somente nas combinações descritas a seguir, a fim de obter quatro tipos básicos de sinalização de segurança, observando os requisitos das tabelas apresentadas para proporcionalidades paramétricas e os requisitos da para as cores. Sinalização de proibição - a sinalização de proibição deve obedecer a: a) Forma: circular; b) Cor de contraste: branca; c) Barra diametral e faixa circular (cor de segurança): vermelha; d) Cor do símbolo: preta; e) Margem (opcional): branca; f) Proporcionalidades paramétricas. Sinalização de alerta - a sinalização de alerta deve obedecer a: a) Forma: triangular; b) Cor do fundo (cor de contraste): amarela; c) Moldura: preta; d) Cor do símbolo (cor de segurança): preta ; e) Margem (opcional): branca; f) Proporcionalidades paramétricas. Sinalização de orientação e salvamento - a sinalização de orientação deve obedecer a: a) Forma: quadrada ou retangular; b) Cor do fundo (cor de segurança): verde; c) Cor do símbolo (cor de contraste): fotoluminescente; d) Margem (opcional): fotoluminescente; e) Proporcionalidades paramétricas. Sinalização de equipamentos - a sinalização de equipamentos de combate a incêndio deve obedecer: a) Forma: quadrada ou retangular; b) Cor de fundo (cor de segurança): vermelha; c) Cor do símbolo (cor de contraste): fotoluminescente; d) Margem (opcional): fotoluminescente; e) Proporcionalidades paramétricas. Elaborado por: Analisado por: Professor : Marcelo Gandra Falcone Alessandra Aparecida Vieira Marcelo Gandra Falcone QUANDO IMPRESSO CONSIDERAR PIRATARIA - CÓPIA NÃO AUTORIZADA
  • 194.
    UNINOVE Rev. B Engenharia deAvaliações e Perícias Manutenção Predial e Avaliação de Máquinas e Equipamentos 16/07/2011 Folha 194/424 Elaborado por: Analisado por: Professor : Marcelo Gandra Falcone Alessandra Aparecida Vieira Marcelo Gandra Falcone QUANDO IMPRESSO CONSIDERAR PIRATARIA - CÓPIA NÃO AUTORIZADA
  • 195.
    UNINOVE Rev. B Engenharia deAvaliações e Perícias Manutenção Predial e Avaliação de Máquinas e Equipamentos 16/07/2011 Folha 195/424 Elaborado por: Analisado por: Professor : Marcelo Gandra Falcone Alessandra Aparecida Vieira Marcelo Gandra Falcone QUANDO IMPRESSO CONSIDERAR PIRATARIA - CÓPIA NÃO AUTORIZADA
  • 196.
    UNINOVE Rev. B Engenharia deAvaliações e Perícias Manutenção Predial e Avaliação de Máquinas e Equipamentos 16/07/2011 Folha 196/424 Elaborado por: Analisado por: Professor : Marcelo Gandra Falcone Alessandra Aparecida Vieira Marcelo Gandra Falcone QUANDO IMPRESSO CONSIDERAR PIRATARIA - CÓPIA NÃO AUTORIZADA
  • 197.
    UNINOVE Rev. B Engenharia deAvaliações e Perícias Manutenção Predial e Avaliação de Máquinas e Equipamentos 16/07/2011 Folha 197/424 Elaborado por: Analisado por: Professor : Marcelo Gandra Falcone Alessandra Aparecida Vieira Marcelo Gandra Falcone QUANDO IMPRESSO CONSIDERAR PIRATARIA - CÓPIA NÃO AUTORIZADA
  • 198.
    UNINOVE Rev. B Engenharia deAvaliações e Perícias Manutenção Predial e Avaliação de Máquinas e Equipamentos 16/07/2011 Folha 198/424 Elaborado por: Analisado por: Professor : Marcelo Gandra Falcone Alessandra Aparecida Vieira Marcelo Gandra Falcone QUANDO IMPRESSO CONSIDERAR PIRATARIA - CÓPIA NÃO AUTORIZADA
  • 199.
    UNINOVE Rev. B Engenharia deAvaliações e Perícias Manutenção Predial e Avaliação de Máquinas e Equipamentos 16/07/2011 Folha 199/424 Elaborado por: Analisado por: Professor : Marcelo Gandra Falcone Alessandra Aparecida Vieira Marcelo Gandra Falcone QUANDO IMPRESSO CONSIDERAR PIRATARIA - CÓPIA NÃO AUTORIZADA
  • 200.
    UNINOVE Rev. B Engenharia deAvaliações e Perícias Manutenção Predial e Avaliação de Máquinas e Equipamentos 16/07/2011 Folha 200/424 Elaborado por: Analisado por: Professor : Marcelo Gandra Falcone Alessandra Aparecida Vieira Marcelo Gandra Falcone QUANDO IMPRESSO CONSIDERAR PIRATARIA - CÓPIA NÃO AUTORIZADA
  • 201.
    UNINOVE Rev. B Engenharia deAvaliações e Perícias Manutenção Predial e Avaliação de Máquinas e Equipamentos 16/07/2011 Folha 201/424 Elaborado por: Analisado por: Professor : Marcelo Gandra Falcone Alessandra Aparecida Vieira Marcelo Gandra Falcone QUANDO IMPRESSO CONSIDERAR PIRATARIA - CÓPIA NÃO AUTORIZADA
  • 202.
    UNINOVE Rev. B Engenharia deAvaliações e Perícias Manutenção Predial e Avaliação de Máquinas e Equipamentos 16/07/2011 Folha 202/424 Elaborado por: Analisado por: Professor : Marcelo Gandra Falcone Alessandra Aparecida Vieira Marcelo Gandra Falcone QUANDO IMPRESSO CONSIDERAR PIRATARIA - CÓPIA NÃO AUTORIZADA
  • 203.
    UNINOVE Rev. B Engenharia deAvaliações e Perícias Manutenção Predial e Avaliação de Máquinas e Equipamentos 16/07/2011 Folha 203/424 Elaborado por: Analisado por: Professor : Marcelo Gandra Falcone Alessandra Aparecida Vieira Marcelo Gandra Falcone QUANDO IMPRESSO CONSIDERAR PIRATARIA - CÓPIA NÃO AUTORIZADA
  • 204.
    UNINOVE Rev. B Engenharia deAvaliações e Perícias Manutenção Predial e Avaliação de Máquinas e Equipamentos 16/07/2011 Folha 204/424 9.10.10 Sistema de Detecção e Alarme Contra Incêndio:          Sistema de detecção e alarme contra incêndio de acordo com NBR 17240/2010. Todo sistema deve ter duas fontes de alimentação. A principal é a rede de tensão alternada e a auxiliar é constituída por baterias ou no-break. Quando a fonte de alimentação auxiliar for constituída por bateria de acumuladores, esta deve ter autonomia mínima de 24 horas em regime de supervisão, sendo que o regime de alarme deve ser de no mínimo 15 minutos, para suprimento das indicações sonoras e/ou visuais ou o tempo necessário para a evacuação da edificação. As centrais de detecção e alarme deverão ter dispositivo de teste dos indicadores luminosos e dos sinalizadores acústicos. A distância máxima a ser percorrida por uma pessoa, em qualquer ponto da área protegida até o acionador manual mais próximo, não deve ser superior a 30 (trinta) metros. A distância máxima a ser percorrida, livre de obstáculos, por uma pessoa em qualquer ponto da área protegida até o acionador manual mais próximo não deve ser superior a 16 m e a distância entre os acionadores não deve ultrapassar 30 m. Na separação vertical, cada andar da edificação deve ter pelo menos 1 (um) acionador manual. Preferencialmente, os acionadores manuais devem se localizados junto aos Hidrantes. O acionador manual deve ser instalado em locais de maior probabilidade de trânsito de pessoas em caso de emergência, tais como: nas saídas de áreas de trabalho, lazer, em corredores, halls, saídas de emergência para o exterior, etc. Nos Edifícios com mais de um pavimento, deverá ser previsto pelo menos um acionador manual em cada pavimento. Os mezaninos estarão dispensados desta exigência, caso o acionador manual do piso principal dê cobertura/caminhamento para a área do mezanino, atendendo o item 5.7 acima. Nos Locais de Reunião de Público, tipo: casas de show, música, espetáculos, danças, discoteca, danceteria, salões de baile, etc. , onde se tem naturalmente uma situação acústica elevada, será obrigatória também a instalação de sinalizadores visuais, quando houver a exigência de sistema de detecção e alarme. Erros Comuns: 1. Instalação do painel central em local sem permanência constante de pessoas; 2. Vidros quebrados nos pontos de acionamento manual; 3. Falta de indicação das providências a serem tomadas para o acionamento manual de alarmes; 4. Fiação aparente e passando por locais sujeitos a avarias decorrentes de incêndios; 5. Substituição do fusível por pedaços de metal, papel laminado de cigarro e similares; Elaborado por: Analisado por: Professor : Marcelo Gandra Falcone Alessandra Aparecida Vieira Marcelo Gandra Falcone QUANDO IMPRESSO CONSIDERAR PIRATARIA - CÓPIA NÃO AUTORIZADA
  • 205.
    UNINOVE Rev. B Engenharia deAvaliações e Perícias Manutenção Predial e Avaliação de Máquinas e Equipamentos 16/07/2011 Folha 205/424 9.10.11 Brigada de Incêndio Descrição do Sistema: A equipe de emergência é a brigada de combate a incêndio. Ela é formada por pessoas treinadas, com conhecimentos sobre prevenção contra incêndios, abandono de edificações e pronto-socorro, além de devidamente dimensionada de acordo com a população existente na edificação. Anomalias e Falhas: FALTA DE CONSTATAÇÂO DE:  Formação de Brigada de Incêndio de acordo com IT 17/2004 e NBR 14276/99.  Critérios básicos para aceitação de Brigadista: Permanecer na Edificação durante seu turno de trabalho; possuir boa condição física e boa saúde; Possuir bom conhecimento das instalações; ter mais de 18 anos; ser alfabetizado.  Pelo Decreto 34.571/94: Os estabelecimentos mencionados no artigo 1, teatros, cinemas, circos, festas, restaurantes, boites, auditórios e outros locais de reunião que se destinem a exibição de espetáculos, programados ou não, deverão manter durante todo o período em que estiverem abertos ao público, “ Brigada de Combate a Incêndio”, devidamente uniformizados e identificados por crachá.  Erros Comuns: a) Equipe não treinada, embora constasse no projeto técnico aprovado que havia equipe treinada; as pessoas citadas nem sabiam que haviam sido indicadas para tal função; b) Dificilmente a carga horária de treinamento é seguida; c) Os funcionários treinados saem da empresa e as vagas deixadas não são preenchidas; d) Componentes com conhecimento insuficiente ou sem treinamento prático; Recomendações:     Promover vistoria semestral dos equipamentos de prevenção e combate a incêndios, assim como o treinamento de abandono de prédio com moradores e usuários. Manter relação das pessoas com dificuldade de locomoção, permanente ou temporária, deve ser atualizada constantemente e os procedimentos necessários para a retirada dessas pessoas em situações de emergência. A Brigada deve garantir a saída dos ocupantes do prédio de acordo com o "Plano de Abandono", não esquecendo de verificar a existência de retardatários em sanitários, salas e corredores. A relação e a localização dos membros da equipe de emergência devem ser conhecidas por todos os usuários. Elaborado por: Analisado por: Professor : Marcelo Gandra Falcone Alessandra Aparecida Vieira Marcelo Gandra Falcone QUANDO IMPRESSO CONSIDERAR PIRATARIA - CÓPIA NÃO AUTORIZADA
  • 206.
    UNINOVE Rev. B Engenharia deAvaliações e Perícias Manutenção Predial e Avaliação de Máquinas e Equipamentos 16/07/2011 Folha 206/424 9.10.12 AVCB – Auto de Vistoria do Corpo de Bombeiros Auto de Vistoria do Corpo de Bombeiros (A. V. C. B.): é o documento emitido pelo Corpo de Bombeiros da Policia Militar do Estado de São Paulo (CBPMESP) certificando que, durante a vistoria, a edificação possuía as condições de segurança contra incêndio (É um conjunto de medidas estruturais, técnicas e organizacionais integradas para garantir a edificação um nivel ótimo de proteção no segmento de segurança contra incêndios e pânico.), previstas pela legislação e constantes no processo, estabelecendo um período de revalidação.  Legislação : DECRETO N. 46.076 de 31/08/2001. Regulamento de Segurança contra Incêndio das Edificações e área de risco. 1. Aprovação do AVCB: Artigo 9. O AVCB será expedido pelo Corpo de Bombeiros, desde que as edificações e áreas de risco estejam com suas medidas de segurança contra incêndio projetados e instalados de acordo com respectivo processo aprovado, após a vistoria de que trata o artigo 10. 2. Validade do AVCB: Artigo 9. item 6. O AVCB terá validade, a contar de sua expedição; de 2 (dois) anos para os locais de reunião de público e de 3 (três) anos para as demais ocupações, com exceção das construções provisórias, que terão prazo estabelecido de acordo com suas características peculiares, conforme descrito na ITCB de Procedimentos Administrativos. Em que casos é obrigatório o A.V.C.B.: I – construção e reforma; II – mudança da ocupação ou uso; III – ampliação da área construída; IV – regularização das edificações e áreas de risco; V - construções provisórias (circos, eventos, etc.). Em que casos não é obrigatório o A.V.C.B.: I - residências exclusivamente unifamiliares; II - residências exclusivamente unifamiliares localizadas no pavimento superior de ocupação mista, com até dois pavimentos e que possuam acessos independente Elaborado por: Analisado por: Professor : Marcelo Gandra Falcone Alessandra Aparecida Vieira Marcelo Gandra Falcone QUANDO IMPRESSO CONSIDERAR PIRATARIA - CÓPIA NÃO AUTORIZADA
  • 207.
    UNINOVE Rev. B Engenharia deAvaliações e Perícias Manutenção Predial e Avaliação de Máquinas e Equipamentos 16/07/2011 Folha 207/424 9.10.12 Sistema de Equipamentos e Máquinas em geral A inspeção deverá ser restrita a Telefonia, Antenas , CTV, Geradores, Elevadores, Bombas, Etc 9.10.12.1 Instalação de Equipamento Complementar / Gerador de Emergência:             Verificar se existe reservatório de combustível ou produto químico inflável maior que 250 litros ou mais de um reservatórios inter-comunicantes totalizando mais de 250 litros. Caso afirmativo verificar existência de contrato com EPAE e Alvará de Equipamento em validade. Verificar se existe porta corta-fogo em salas fechadas dentro de edificações ou subestações Verificar a existência e validade dos extintores de incêndio para líquidos inflamáveis e equipamentos elétricos; Verificar a existência de placa indicativa de “Não fume” e “Inflamável”; Verificar se a sala do grupo gerador é devidamente ventilada; Se utilizar o grupo numa casa ou local fechado verificar se foi providenciada uma ventilação adequada e conduza os gases de escape para fora do recinto. Verificar se existe meio de exaustão dos gases produzidos pelo motor; Verificar se a sala, o chão e o grupo gerador estão limpos e se existem meios para que sempre que ocorram derramamentos de combustível, óleo, eletrólito de bateria ou liquido de refrigeração, os mesmos possam ser imediatamente limpos ou se existe Instalação de Dispositivo que funcione como Bacia de Contenção para que sempre que ocorram derramamentos de combustível, óleo, eletrólito de bateria ou liquido de refrigeração, os mesmos possam ser imediatamente limpos e não contaminem o ambiente ou causem riscos ao entorno (a bacia de contenção é obrigatória para tanques maiores que 250 litros e em eventos). Inexistência de armazenamento de líquidos inflamáveis nas proximidades do motor; Verificar se os desperdícios com óleo estão em recipientes metálicos tapados; Verificar a existência de agentes que permitam faíscas, chamas ou outras fontes de ignição nas proximidades do combustível ou das baterias.pois os vapores do combustível são explosivos. O hidrogênio gerado pela carga das baterias também é explosivo; Verificar a inexistência de qualquer fuga (vazamento) no sistema de combustível; Elaborado por: Analisado por: Professor : Marcelo Gandra Falcone Alessandra Aparecida Vieira Marcelo Gandra Falcone QUANDO IMPRESSO CONSIDERAR PIRATARIA - CÓPIA NÃO AUTORIZADA
  • 208.
    UNINOVE Rev. B Engenharia deAvaliações e Perícias Manutenção Predial e Avaliação de Máquinas e Equipamentos 16/07/2011 Folha 208/424 9.10.12.2 Isolamento Acústico (nível de ruido) :      Isolamento acústico da edificação de acordo com a Lei n° 13.885/2004. Conforma Normas NBR 10.151 e 10.152 Equipamentos de medição. As medições devem ser efetuadas com medidor de nível sonoro, como especificado na IEC 651Sonômetros. Deve ser utilizada a escala de compensação A e respostas de leitura rápida. O nível sonoro deve ser medido no local e hora de ocorrência do incômodo. As medições no ambiente externo devem ser efetuadas a 1,2 m acima do solo e, no mínimo, a 1,5 m de paredes, edifícios e outras superfícies refletoras. Quando as circunstâncias exigirem, as medições podem ser efetuadas a diferentes alturas e próximo à paredes (por exemplo, 0,5 m em frente a uma janela aberta), desde que isto esteja especificado e levado em consideração. As medições nos ambientes internos devem ser efetuadas a uma distância no mínimo 1 m das paredes; 1,2 m acima do piso e a 1,5 m de janelas. A fim de se reduzir distorções oriundas de ondas estacionárias, os níveis sonoros medidos em interiores devem ser a média de pelo menos 3 posições a 0,5 m uma da outra. Isto é especialmente importante para as medições de ruído da baixa freqüência. A média aritmética das leituras determina o valor a ser tomado. Elaborado por: Analisado por: Professor : Marcelo Gandra Falcone Alessandra Aparecida Vieira Marcelo Gandra Falcone QUANDO IMPRESSO CONSIDERAR PIRATARIA - CÓPIA NÃO AUTORIZADA
  • 209.
    UNINOVE Rev. B Engenharia deAvaliações e Perícias Manutenção Predial e Avaliação de Máquinas e Equipamentos 16/07/2011 Folha 209/424 9.10.12.3 Equipamentos de Transporte Vertical: Descrição do sistema Presente na grande maioria das edificações, o elevador é um meio de transporte seguro e eficiente desde que usado e mantido da maneira correta. O sistema consiste em quatro grupos: Cabina: O que comumente conhecemos como elevador; local através do qual as pessoas são transportadas (também é conhecido como “carro”); Casa de máquinas: Geralmente na cobertura do edifício, ela resguarda os painéis elétricos e de comando, os geradores e motores de tração, freios e sistema de ventilação (natural ou forçada); Poço do elevador: Onde temos as guias que auxiliam no suave deslocamento da cabina, cabos de tração, peso e contra-peso e sistemas de segurança (normalmente compostos por sistemas hidráulicos instalados no fundo do poço); Andares ou pavimentos: Nos andares temos além das botoeiras de acionamento (chamada), os sistemas de abertura de porta que são acionados assim que o elevador estiver nivelado com o piso do pavimento. Figura 76 –Elevador convencional- IBAPE –SP, PUJADAS, F.Z.A.; GOMIDE, T.L.F.; FAGUNDES, J.C.P. e OUTROS, Inspeção Predial –Check-Up Predial: Guia da Boa Prevenção. São Paulo: Leud, 2009. Elaborado por: Analisado por: Professor : Marcelo Gandra Falcone Alessandra Aparecida Vieira Marcelo Gandra Falcone QUANDO IMPRESSO CONSIDERAR PIRATARIA - CÓPIA NÃO AUTORIZADA
  • 210.
    UNINOVE Rev. B Engenharia deAvaliações e Perícias Manutenção Predial e Avaliação de Máquinas e Equipamentos 16/07/2011 Folha 210/424 Figura 77 – Elevador Hidráulico - IBAPE –SP, PUJADAS, F.Z.A.; GOMIDE, T.L.F.; FAGUNDES, J.C.P. e OUTROS, Inspeção Predial –Check-Up Predial: Guia da Boa Prevenção. São Paulo: Leud, 2009. Finalidade do sistema Este sistema tem como finalidade o transporte vertical de passageiros ou cargas e deve fazê-lo com conforto e segurança, contando para isto, com uma série de dispositivos. Existem também procedimentos que devem ser obedecidos pelos seus usuários, evitando assim um elevado tempo de espera ou mesmo de viagem, quebra de dispositivos de porta ou mesmo de cabina (iluminação, botoeiras, etc..). No tocante a segurança, o equipamento dispõe de alarme, sistema de interfone e luz de emergência, todos situados no interior da cabina e geralmente (exceto a iluminação de emergência) interligados com a portaria ou a recepção da edificação. O sistema de elevadores, referindo-nos as edificações comerciais com instalações mais modernas, também possuem uma finalidade importante em situações de emergência que é denominada OEI; a Operação de Emergência e Incêndio (OEI) consiste na descida obrigatória de todos os elevadores, independente do sentido de seu deslocamento ou de solicitações de pavimentos, ao piso térreo em casos de emergência (alarme de incêndio). Principais anomalias  Anomalias construtivas:  Portas de pavimentos arranhadas (raspam ao abrir);  Sensação de desconforto durante a viagem devido a uma saída ou parada brusca;  Alarme não funciona ou está posicionado (campainha) em local onde não existem pessoas próximas;  Interfone não funciona; Elaborado por: Analisado por: Professor : Marcelo Gandra Falcone Alessandra Aparecida Vieira Marcelo Gandra Falcone QUANDO IMPRESSO CONSIDERAR PIRATARIA - CÓPIA NÃO AUTORIZADA
  • 211.
    UNINOVE Engenharia de Avaliaçõese Perícias Manutenção Predial e Avaliação de Máquinas e Equipamentos  Rev. B 16/07/2011 Folha 211/424 Desnível entre piso da cabina e o pavimento onde ocorreu a parada. Em geral, estas anomalias construtivas são causadas por uma má regulagem (portas, desnível, velocidade de viagem, etc.) ou por problemas de instalação (cabos de interfones rompidos em algum ponto, etc.). Também podem ocorrer falhas de projeto ou mesmo definições erradas, como por exemplo, a posição do alarme sonoro no hall da edificação ou na portaria. Anomalias em função da utilização: • Quebra de botões da cabina e de pavimentos; • Falha nos sistemas de ventilação interna da cabina; • Falha no sistema de iluminação da cabina; • Vandalismo. Itens de Inspeção  Equipamentos de transporte vertical de acordo com NBR .  Verificar existencia de placa com o numero de registro da PMSP.  Verificar o número de elevadores. Lembrar que será indispensável à instalação de elevador em edificações que possuírem mais de um pavimento e população superior a 600 (seiscentas) pessoas, e que não possuam rampas para atendimento da circulação vertical.  Verificar se as travas das portas estão funcionando  Verificar se os espaços de circulação fronteiras às portas dos elevadores, em qualquer andar, deverão ter dimensão não inferior a 1,50 m ( um metro e cinqüenta centímetros ).  Verificar existência de elevadores ligados ao sistema de emergência através do gerador.  Com a finalidade de assegurar o uso por pessoas portadores de deficiências físicas, o único ou pelo menos um dos elevadores deverá: a) estar situado em local a eles acessível; b) estar situado em nível com o pavimento a que servir ou estar interligado ao mesmo por rampa; c) ter cabine com dimensões internas mínimas de 1,10 m ( um metro e dez centímetros ) por 1,40 m ( um metro e quarenta centímetros ); d) ter porta com vão de 0,80 m ( oitenta centímetros ); e) servir ao estacionamento em que haja previsão de vagas de veículos para pessoas portadores de deficiência físicas. Plano de Manutenção Predial Dentre as muitas responsabilidades legais na administração de um Condomínio, está a contratação de uma empresa de manutenção, recomendando-se normalmente que esta empresa seja o próprio fabricante do equipamento, pois, somente ele tem condições efetivas de mantê-lo, garantindo suas características originais. Elaborado por: Analisado por: Professor : Marcelo Gandra Falcone Alessandra Aparecida Vieira Marcelo Gandra Falcone QUANDO IMPRESSO CONSIDERAR PIRATARIA - CÓPIA NÃO AUTORIZADA
  • 212.
    UNINOVE Rev. B Engenharia deAvaliações e Perícias Manutenção Predial e Avaliação de Máquinas e Equipamentos 16/07/2011 Folha 212/424 Também é importante que condomínio tenha conhecimento, de que pelo artigo 10 da Lei 10.348 (São Paulo), as empresas conservadoras deverão manter serviço de prontidão, com no mínimo dois técnicos capacitados, para atendimento de situações de emergência. Os contratos de manutenção basicamente se dividem em dois tipos: • Contrato de Conservação: prevê somente a utilização de mão de obra especializada para execução manutenção preventiva / corretiva e atendimento aos chamados de emergência, não incluindo portanto, materiais e/ou peças de reposição; • Contrato de Manutenção: prevê a utilização de mão de obra especializada para execução da manutenção preventiva / corretiva e atendimento dos chamados de emergência, além do fornecimento de componentes mecânicos, elétricos e eletrônicos, desde que constatado seu desgaste natural, excluindo-se portanto, a reposição de componentes danificados por atos de vandalismo ou para modernização/ embelezamento. Nas visitas mensais para a realização da manutenção, os técnicos da empresa mantenedora devem fornecer ao Condomínio uma cópia da chamada “ficha de atendimento”, na qual é preenchido um breve relato do serviço realizado pelo técnico, incluindo a discriminação das peças utilizadas. É de fundamental importância que o Condomínio mantenha estas fichas em arquivo, pois este documento além de retratar o histórico do equipamento, comprova a realização das substituições de peças e componentes danificados. Toda e qualquer intervenção quando contratada junto à terceiros, tais como limpeza de poço do elevador, substituição de espelho da cabina, instalação de câmeras de vídeo, entre outros, deverá ser previamente comunicada à empresa mantenedora para que a mesma possa avaliar se fazer-se-á necessária a presença de um técnico para o acompanhamento dos serviços e/ou orientar com relação a execução do mesmos. Pessoas não habilitadas podem gerar intervenções inadequadas com inúmeras conseqüências, dentre as quais podemos citar riscos de acidentes graves, diminuição da vida útil dos equipamentos, desativação dos componentes de segurança e outros. O Condomínio é responsável pela limpeza interna da cabina (espelhos, revestimentos, teto, piso, etc) enquanto que a mantenedora é responsável pela limpeza do poço dos elevadores e sala de máquinas, ambos locais cujo acesso deve ser restrito aos técnicos da mantenedora e pessoas habilitadas / préautorizadas. Elaborado por: Analisado por: Professor : Marcelo Gandra Falcone Alessandra Aparecida Vieira Marcelo Gandra Falcone QUANDO IMPRESSO CONSIDERAR PIRATARIA - CÓPIA NÃO AUTORIZADA
  • 213.
    UNINOVE Rev. B Engenharia deAvaliações e Perícias Manutenção Predial e Avaliação de Máquinas e Equipamentos 16/07/2011 Folha 213/424 A sala de máquinas, geralmente localizada na cobertura da edificação, abriga as máquinas, quadros de comando, polias, motores e outros componentes e responsáveis pelo funcionamento do elevador, e portanto, trata-se de local que deve ser mantido livre de objetos estranhos, com ventilação adequada, livre de infiltrações e permanentemente trancada por questões de segurança. Lembrem-se daquela placa de comunicação visual instalada ao lado do elevador com os dizeres “Antes de entrar no elevador verifique se o mesmo encontra-se parado neste andar”. Esta frase nos remete a uma importante reflexão com relação aos aspectos de segurança, pois o elevador, apesar de vistoriado periodicamente pelos técnicos quando da realização da manutenção, também deve ser constantemente observado pelo Condomínio durante a sua utilização rotineira; como exemplo, podemos citar a atenção que devemos ter em relação ao nivelamento de piso, ou seja, ao abrir as portas (porta de cabina e de pavimento), o piso da cabina deverá estar nivelado com o piso do pavimento, evitando assim acidentes. Dentre os dispositivos de segurança normalmente verificados pelos técnicos podemos citar: • Trinco de porta: elemento responsável por garantir que o elevador não se desloque até que as portas de cabina e pavimento estejam totalmente fechadas, atuando no conjunto fechador e trinco; • Limitador de velocidade: elemento responsável pelo monitoramento da velocidade do elevador, composto por componentes de segurança elétrica e mecânica (freios de segurança e pára-choque), que atuam quando ocorrem alterações bruscas das velocidades pré-estabelecidas no sistema, geralmente causadas por alguma pane, parando simultaneamente o elevador. Recomendações e orientações técnicas Quando falamos de segurança, é fundamental tratarmos da questão referente ao resgate de passageiros presos. Independentemente se a causa da parada do elevador ocorreu por falha de algum componente do sistema ou falta de energia elétrica, nestas situações, o procedimento correto a ser adotado é o acionamento imediato da empresa mantenedora pelo Condomínio, que deverá ainda manter os passageiros calmos, informando-os de que o resgate foi acionado e encontra-se a caminho. O resgate nunca deverá ser feito por pessoas não habilitadas, pois poderão ocorrer graves acidentes caso o elevador volte a se deslocar no momento da sua realização. A falta de conhecimento sobre a maneira correta de se utilizar o elevador pode gerar inconvenientes aos seus usuários e/ou prejuízos ao Condomínio. Diante deste cenário, várias empresas mantenedoras/fabricantes já oferecem aos seus clientes cursos para zeladores / administradores, onde são abordados Elaborado por: Analisado por: Professor : Marcelo Gandra Falcone Alessandra Aparecida Vieira Marcelo Gandra Falcone QUANDO IMPRESSO CONSIDERAR PIRATARIA - CÓPIA NÃO AUTORIZADA
  • 214.
    UNINOVE Rev. B Engenharia deAvaliações e Perícias Manutenção Predial e Avaliação de Máquinas e Equipamentos 16/07/2011 Folha 214/424 temas como: noções básicas sobre funcionamento de elevador, seus principais componentes de segurança, procedimentos a serem adotados durante a paralisação do elevador e a forma correta de agir em caso de passageiro preso. Recomendamos que o Condomínio, seja no recebimento de novos equipamentos / modernização ou após um longo período de operação e manutenção dos equipamentos existentes, procure por uma avaliação de um consultor especializado. Damos a seguir algumas dicas para um rápido “check up” possível de ser executado pelo Condomínio: Documentação / sinalização:  Manter em local visível a chapa de identificação / registro do elevador junto a Prefeitura, fornecida por ocasião da emissão do Alvará de Instalação;  Manter em local visível a placa “Antes de entrar no elevador verifique se o m mesmo encontra-se parado neste andar”, instalada no hall;  Manter em cada elevador, em qualquer lugar de destaque, placa indicativa do nome, endereço e telefone, atualizados, dos responsáveis pela instalação e conservação;  Manter em local de fácil acesso a RIA – Relatório de Inspeção Anual, cuja emissão é obrigatória pela empresa de manutenção. Casa de Máquinas e poço do elevador:  Garantir o acesso restrito à empresa de manutenção;  Manter em local visível a ficha de atendimento (histórico); Observar periodicamente a existência de ruídos e / ou odores anormais – nesta situação, recomendamos o acionamento imediato da empresa de manutenção. • Operação do elevador:  o Observar o funcionamento de botoeiras no andar;  o Observar o nivelamento de pisos (elevador e andar) conforme mencionamos anteriormente;  o Observar se a porta do elevador abre somente quando o mesmo estiver parado e nivelado em relação ao andar destino;  o Observar o funcionamento do ventilador da cabina (quando existir) durante a viajem;  o Observar a existência de ruídos ou deslocamento turbulento (balanço) do elevador durante o percurso (viajem);  o Testar periodicamente (recomendamos a freqüência semanal) o interfone e o alarme de emergência (dentro da cabina);  o Solicitar para que a empresa de manutenção teste a iluminação de emergência dentro da cabina e na sala de máquinas. Elaborado por: Analisado por: Professor : Marcelo Gandra Falcone Alessandra Aparecida Vieira Marcelo Gandra Falcone QUANDO IMPRESSO CONSIDERAR PIRATARIA - CÓPIA NÃO AUTORIZADA
  • 215.
    UNINOVE Rev. B Engenharia deAvaliações e Perícias Manutenção Predial e Avaliação de Máquinas e Equipamentos 16/07/2011 Folha 215/424 Informações úteis A seguir, serão fornecidas as normas técnicas e leis que norteiam estes sistemas quanto à sua importância e manutenção e que servem de complementação e referência para estudos mais aprofundados:  ABNT – Associação Brasileira de Normas Técnicas  NBR 30/78 – Construção e Instalação de Elevadores  Norma NBR 7.192/85 – Projeto, Fabricação e Instalação de Elevadores  Norma NM 207/99 – Elevadores Elétricos de Passageiros  Norma NM 206/2001 – Elevadores Hidráulicos de Passageiros  Norma NM 195/99 – Escadas Rolantes e Esteiras Rolantes  Norma NBR 5.665/83 – Cálculo de Tráfego nos Elevadores  Norma NM 313/2007 – Elevadores para Transporte de Pessoa Portadora de Deficiência  Norma NBR 10.147 – Escadas Rolantes e Esteiras Rolantes – Inspeções e Ensaios Periódicos e de Rotina  Norma NBR 10.982/90 – Elevadores Elétricos – Dispositivos de Operação e Sinalização  Norma NBR 12.892/90 – Projeto, Fabricação e Instalação de Elevador Unifamiliar  Norma NBR 14.712 – Elevadores Elétricos, Carga, Monta-cargas, Elevador de maca – Requisitos de Segurança, Fabricação e Instalação;  NBR 9.050/2004 – Acessibilidade a Edificações, Mobiliário, Espaços e Equipamentos Urbanos.  Legislação Municipal: o Rio de Janeiro – Decreto-lei nº 2.743 de 07/01/99; e Lei nº 3.311 de 3 de dezembro de 2001 (Acessibilidade); o São Paulo – Decreto-lei nº 10.348 de 04/09/98 alterada pela Lei nº 12.751 de 4 de novembro de 1998 e Lei nº 10.098 de 19/12/2000  American Society of Mechanical Engineers: o ANSI/ASME A17.2-1985 – Inspectors Manual for Elevators and Escalators; o ANSI/ASME A17.1-1996 – Safety Code for Elevators and Escalators. A Prefeitura do Município de São Paulo disponibiliza, pelo seu site, a relação de empresas cadastradas junto ao Departamento de Controle do Uso de Imóveis/Contru 05 para a manutenção de elevadores. Denúncias sobre falta de segurança no funcionamento de elevadores podem ser direcionadas ao Departamento de Controle do Uso de Imóveis/Contru 03 Denuncias localizado à Rua São Bento, 405 - 19º andar - Ed. Martinelli. – CEP: 01011000. Elaborado por: Analisado por: Professor : Marcelo Gandra Falcone Alessandra Aparecida Vieira Marcelo Gandra Falcone QUANDO IMPRESSO CONSIDERAR PIRATARIA - CÓPIA NÃO AUTORIZADA
  • 216.
    UNINOVE Rev. B Engenharia deAvaliações e Perícias Manutenção Predial e Avaliação de Máquinas e Equipamentos 16/07/2011 Folha 216/424 Perguntas mais freqüentes Em função do mau estado, o elevador pode descer pelo poço sem controle? R.: Mesmo em prédios residenciais de menor porte, os equipamentos possuem uma série de dispositivos de segurança que são automaticamente acionados quando houver uma aceleração da cabina acima do limite aceitável. É evidente que, para os sistemas operarem adequadamente, a manutenção por empresa responsável e a execução de testes periódicos (em alguns sistemas) são fundamentais. Existem riscos em viagens apenas com crianças (sozinhas)? R.: Sim. Como dissemos anteriormente, existem pontos importantes que o passageiro deve observar antes de entrar no elevador (desnivelamento entre o piso da cabina e o piso do pavimento, o espaçamento entre a cabina e o piso do pavimento, etc.) e dificilmente a criança tem este discernimento. Outro risco a considerar é a parada imprevista do elevador e o pânico natural que isto gera nas pessoas. Não é perigoso permanecer dentro do elevador parado ao invés de tentar uma saída (ser resgatada por pessoal não preparado)? R.: Não. A grande verdade é que o risco maior existe na tentativa de resgate sem que a pessoa esteja treinada para tal. É mais seguro, em função de todos os dispositivos já citados, que o passageiro espere calmamente o resgate, após ter notificado o seu enclausuramento ao zelador ou à recepção da edificação. Você sabia? Que o elevador não pode ser utilizado em casos de incêndio; Que as empresas de manutenção e conservação possuem plantão 24hs para atendimentos de emergência e que o prazo para estes atendimentos deve constar em contrato; É muito perigoso permitir a entrada de água no poço do elevador, proveniente de grandes vazamentos ou da lavagem de pavimentos, pois existem diversos componentes eletrônicos e elétricos na cabina e no poço, que podem ser danificados e comprometer de forma séria, a operação do sistema. Elaborado por: Analisado por: Professor : Marcelo Gandra Falcone Alessandra Aparecida Vieira Marcelo Gandra Falcone QUANDO IMPRESSO CONSIDERAR PIRATARIA - CÓPIA NÃO AUTORIZADA
  • 217.
    UNINOVE Rev. B Engenharia deAvaliações e Perícias Manutenção Predial e Avaliação de Máquinas e Equipamentos 16/07/2011 Folha 217/424 Figura 78 –Casa de Maquinas - Fotos CONTRU 2010. Elaborado por: Analisado por: Professor : Marcelo Gandra Falcone Alessandra Aparecida Vieira Marcelo Gandra Falcone QUANDO IMPRESSO CONSIDERAR PIRATARIA - CÓPIA NÃO AUTORIZADA
  • 218.
    UNINOVE Rev. B Engenharia deAvaliações e Perícias Manutenção Predial e Avaliação de Máquinas e Equipamentos 16/07/2011 Folha 218/424 9.10.12.4 Sistema de ventilação forçada Descrição dos Sistemas Normalmente observamos uma maior aplicação de sistemas de ventilação forçada em edifícios comerciais, hotéis, teatros, edifícios públicos, etc..Estes sistemas de ventilação são normalmente projetados com as seguintes finalidades: • Pressurização em escadarias (rota de fuga) • Ventilação e exaustão de garagens subterrâneas • Ventilação com a finalidade de controle de temperatura em salas de máquinas (subestações elétricas, etc..) Se analisarmos o grau de importância de cada uma destas instalações, observaremos que todas têm como principal ponto de intersecção a vida humana, seja na proteção contra a intoxicação causada pela fumaça / fogo em um ou mais andares próximos à escadaria de emergência, seja na redução no nível de Monóxido de Carbono e de outros poluentes em áreas de estacionamento com pouca ventilação natural ou na manutenção de temperaturas amenas em casas de máquinas, onde equipamentos e instalações elétricas emanam constantemente calor para o ambiente, incorrendo em riscos operacionais. Antes de abordarmos o roteiro de um rápido “check up” desta modalidade de instalações prediais, sintetizaremos abaixo os fundamentos de cada um dos sistemas listados acima: Finalidade dos sistemas a) Pressurização em escadarias (rota de fuga): Consiste em uma instalação com norma ABNT específica – NBR 14880 (Saídas de emergência em edifícios – Escadas de segurança – Controle de fumaça por pressurização), cujo princípio de funcionamento baseia-se na ventilação forçada do ar externo (ventiladores localizados na cobertura ou nos subsolos) para dentro da escadaria, gerando pressão positiva, ou seja, uma maior pressão interna (escadas) em relação ao “hall” dos andares, impedindo assim a infiltração de fumaça para dentro da “rota de fuga”. Este sistema é normalmente acionado durante o procedimento de operação em situações de incêndio e consiste em um ou mais ventiladores, sua respectiva instalação elétrica e quadro de acionamento / comando dos equipamentos, geralmente localizado na recepção ou na central de bombeiros do condomínio. Elaborado por: Analisado por: Professor : Marcelo Gandra Falcone Alessandra Aparecida Vieira Marcelo Gandra Falcone QUANDO IMPRESSO CONSIDERAR PIRATARIA - CÓPIA NÃO AUTORIZADA
  • 219.
    UNINOVE Rev. B Engenharia deAvaliações e Perícias Manutenção Predial e Avaliação de Máquinas e Equipamentos 16/07/2011 Folha 219/424 b) Ventilação e exaustão de garagens subterrâneas: Ao contrário do sistema de pressurização, a ventilação / exaustão de garagens objetiva a circulação / renovação de ar externo no ambiente pouco ventilado e com alta concentração de poluentes gerados por veículos automotivos. Elaborado por: Analisado por: Professor : Marcelo Gandra Falcone Alessandra Aparecida Vieira Marcelo Gandra Falcone QUANDO IMPRESSO CONSIDERAR PIRATARIA - CÓPIA NÃO AUTORIZADA
  • 220.
    UNINOVE Rev. B Engenharia deAvaliações e Perícias Manutenção Predial e Avaliação de Máquinas e Equipamentos 16/07/2011 Folha 220/424 Podemos ter dois princípios básicos de funcionamento para este sistema: • Ventilação Forçada e Exaustão natural Ventilação e exaustão forçada Este sistema pode ser operado manualmente ou através de um sistema de automação, e geralmente, é acionado em horários de grande movimentação de veículos. O sistema é composto por um conjunto de equipamentos (um ou mais ventiladores), sua instalação elétrica e o painel de acionamento / comando. c) Ventilação com a finalidade do controle de temperatura em salas de máquinas: Normalmente operando em subestações (cabines de entrada de energia elétrica) ou salas de geradores de emergência, estes sistemas retiram o calor gerado no próprio ambiente (motores, transformadores, cabos, etc), auxiliando na manutenção de uma temperatura mais amena, evitando assim possíveis colapsos, principalmente em componentes elétricos e motores. Costumam ser sistemas de operação contínua em virtude do calor emanado (subestações elétricas) ou de operação intermitente quando relacionados ao funcionamento de algum equipamento (geradores de emergência, etc). Principais Anomalias • Anomalias construtivas:  Erros de dimensionamento (projeto);  Erros quanto ao conceito de exaustão no que tange a remoção do ar viciado e a respectiva entrada de ar limpo no ambiente;  Erros de instalação quanto a impossibilidade de acesso (para manutenção) a todos os componentes do sistema e a exposição do(s) equipamento(s) ao tempo.  Anomalias em função da utilização:  Operação contínua do equipamento ocasionando o desgaste  prematuro da instalação. Elaborado por: Analisado por: Professor : Marcelo Gandra Falcone Alessandra Aparecida Vieira Marcelo Gandra Falcone QUANDO IMPRESSO CONSIDERAR PIRATARIA - CÓPIA NÃO AUTORIZADA
  • 221.
    UNINOVE Rev. B Engenharia deAvaliações e Perícias Manutenção Predial e Avaliação de Máquinas e Equipamentos 16/07/2011 Folha 221/424 Plano de Manutenção Predial a) No equipamento: • Verificar a fixação do equipamento; • Efetuar a limpeza do equipamento (rotor e carcaça); • Lubrificar mancais e rolamentos (se houver); • Verificar o estado geral do equipamento, eliminando pontos de ferrugem e reapertando todos os elementos de fixação; • Verificar as condições elétricas de funcionamento (motor elétrico). b) No quadro elétrico: • Verificar o funcionamento de botões de acionamento, interruptores e lâmpadas de sinalização; • Verificar tensão e corrente elétrica do equipamento conforme procedimento padrão técnico; • Verificar o estado dos componentes (cabos, contatoras, fusíveis, etc.); • Efetuar o reaperto geral; Recomendações e orientações técnicas Como dicas de “check up” para o condomínio, podemos sugerir as seguintes ações periódicas: • Efetuar testes mensais (mínimo recomendado) dos sistemas observando: • Se todos os ventiladores estão operando; • Se existem ruídos anormais durante a operação (chamar técnico especializado caso isto ocorra); • Se existem materiais obstruindo a entrada de ar de renovação e a saída (forçada ou natural), removendo-os imediatamente; • Se os quadros elétricos estão limpos, sem odor de queimado (isto pode significar alta temperatura e desgaste de cabos e demais componentes), sem sinais de queima nos cabos (alta temperatura, falta de aperto nos terminais / manutenção), sem riscos externos tais como goteiras / infiltrações próximas e se o quadro elétrico esta fechado (estanque) não oferecendo riscos às pessoas que circulam no local; • Se os funcionários do condomínio estão treinados à operar os sistemas; • Se estas áreas consideradas técnicas (sala dos ventiladores / exaustores e sala dos quadros elétricos) são restritas a entrada de funcionários do condomínio / Bombeiros. • No caso da pressurização de escadarias, favor observar capítulo específico para itens de segurança em condomínios neste manual. Elaborado por: Analisado por: Professor : Marcelo Gandra Falcone Alessandra Aparecida Vieira Marcelo Gandra Falcone QUANDO IMPRESSO CONSIDERAR PIRATARIA - CÓPIA NÃO AUTORIZADA
  • 222.
    UNINOVE Rev. B Engenharia deAvaliações e Perícias Manutenção Predial e Avaliação de Máquinas e Equipamentos 16/07/2011 Folha 222/424 Informações úteis a) Quanto a documentação • Manter projetos, memoriais e atestados de funcionamento (normalmente solicitados para a regularização do condomínio junto aos órgãos oficiais como Corpo de Bombeiros e Prefeitura) sob a responsabilidade do administrador do condomínio. • Não permitir que nenhuma outra instalação descaracterize estes sistemas sem uma prévia avaliação por um engenheiro responsável e principalmente, sem que se faça a atualização de projeto em caso de alteração da instalação original. b) Normas técnicas que norteiam estes sistemas quanto a sua importância e manutenção: • NBR 14880 – Saídas de emergência em edifícios – Escadas de segurança – Controle de fumaça por pressurização • NBR 13971 – Sistemas de refrigeração, condicionamento de ar e ventilação – Manutenção programada. Perguntas mais freqüentes  O equipamento pode operar 24 horas? R.: Geralmente não. Todas as instalações que operam durante as 24hs costumam ser projetadas com mais de um equipamento, possibilitando o revezamento entre eles. Lembre-se que todo equipamento que opera sem paradas sofrerá desgaste prematuro de seus componentes.  Quando é que devo operar o sistema? R.: Normalmente os sistemas de exaustão são projetados para operar nos horários de maior concentração de poluentes.Como exemplo, podemos citar estacionamentos onde os sistemas normalmente operam nas horas de “rush”; já no caso da pressurização de escadarias, o sistema pode manter um certo nível de pressão antes de qualquer evento extraordinário (abandono da edificação) mas, operará com toda a sua capacidade durante o evento.  De onde vem o cheiro de queimado? R.: O cheiro de queimado pode ser proveniente do motor que não suporta a carga de trabalho (operação contínua do equipamento) como também, proveniente do quadro elétrico em função do aquecimento interno excessivo (falta de ventilação suficiente no local) e desgaste dos componentes (queima de cabos e terminais).O aquecimento excessivo também pode ser ocasionado pela falta de manutenção (reaperto) e do conseqüente mau contato. Você sabia? Que não podemos obstruir entradas ou saídas de ar para não prejudicar a operação do sistema? Isto reduz a vazão de ar exaurida ou insuflada. Elaborado por: Analisado por: Professor : Marcelo Gandra Falcone Alessandra Aparecida Vieira Marcelo Gandra Falcone QUANDO IMPRESSO CONSIDERAR PIRATARIA - CÓPIA NÃO AUTORIZADA
  • 223.
    UNINOVE Rev. B Engenharia deAvaliações e Perícias Manutenção Predial e Avaliação de Máquinas e Equipamentos 16/07/2011 Folha 223/424 9.10.12.5 Sistema de Ar Condicionado Descrição e finalidade do sistema O sistema de ar condicionado consiste em um processo de tratamento e controle simultâneo da temperatura, umidade, pureza e movimentação do ar, conforme as necessidades do ambiente que se deseja climatizar. Esse processo de tratamento é obtido pela adição de ar externo limpo para a renovação do ar que retorna ao ambiente climatizado, sua filtragem (controle da pureza), seu resfriamento por serpentinas internas (controle de temperatura e umidade). A sua distribuição no ambiente pode ser efetuada por lâminas direcionadoras do próprio aparelho (condicionadores de janela, splits), ou por meio de uma rede de dutos e difusores para sistemas centrais (selfs ou fancoils). Durante o processo de resfriamento, parte do vapor de água contido no ar se condensa no sistema, facilitando a formação de focos de contaminação. A portaria 3.523 do Ministério da Saúde, a Resolução nº 09/2003 da ANVISA e a Norma ABNT NBR 6.401 têm por objetivo estabelecer parâmetros para garantir a qualidade do ar de interiores, pelo seu tratamento e pela renovação constante de parte do ar “viciado” que retorna do ambiente climatizado. Segundo a portaria, o sistema de ar condicionado deve garantir a renovação de no mínimo 27 m3/h/pessoa. O sistema de ar condicionado contempla essa troca, admitindo a igual quantidade de ar externo limpo, que se mistura ao ar ambiente para ser filtrado, resfriado e distribuído. Os proprietários locatários ou prepostos de estabelecimentos com ambientes climatizados com capacidade igual ou superior a 5 TR (15.000 kcal/h ou 60.000Btu/h) estão obrigados a ter um plano de manutenção elaborado e acompanhado por um engenheiro responsável, e também a executar, dentro de uma freqüência definida, as análises de qualidade do ar interno por meio de laboratórios especializados. Elaborado por: Analisado por: Professor : Marcelo Gandra Falcone Alessandra Aparecida Vieira Marcelo Gandra Falcone QUANDO IMPRESSO CONSIDERAR PIRATARIA - CÓPIA NÃO AUTORIZADA
  • 224.
    UNINOVE Rev. B Engenharia deAvaliações e Perícias Manutenção Predial e Avaliação de Máquinas e Equipamentos 16/07/2011 Folha 224/424 Na figura abaixo , podemos observar a sequência de tratamento, onde o ar é primeiramente filtrado, depois resfriado e/ou desumidificado e finalmente devolvido ao ambiente por ventilador, rede de dutos, grelhas etc. Dentre os equipamentos existentes, podemos destacar:  Condicionador de janela: o aparelho se compõe de dois compartimentos. O primeiro situado no lado do ambiente condicionado, contém uma serpentina evaporadora para resfriamento, um filtro que purifica e um ventilador que movimenta o ar. O segundo compartimento, situado no lado externo, contém uma serpentina condensadora que rejeita o calor pára o ar externo, um compressor hermético (parecido com os de geladeira) que faz circular o fluído refrigerante, um tubo capilar e um ventilador para movimentar o ar externo que esfria a serpentina condensadora.  Split: em princípio, o processo de refrigeração é o mesmo, sendo que neste modelo a serpentina evaporadora é instalada no ambiente a ser refrigerado e o compartimento que contém o compressor e a serpentina condensadora está instalado remotamente em ambiente externo. Nesse caso, deve-se estabelecer uma condição para a renovação do ar, pois esse sistema não contempla essa necessidade. FIGURA 2 – Esquema de funcionamento (split System)  Self Contained: é um equipamento de maior porte, para refrigeração de grandes áreas, geralmente operando como uma pequena central, distribuindo ar refrigerado por meio de dutos para diversos ambientes. O retorno é efetuado por dutos ou diretamente para a casa de máquinas por meio de venezianas instaladas em sua porta ou parede. As serpentinas condensadoras podem ser esfriadas a ar ou a água. Elaborado por: Analisado por: Professor : Marcelo Gandra Falcone Alessandra Aparecida Vieira Marcelo Gandra Falcone QUANDO IMPRESSO CONSIDERAR PIRATARIA - CÓPIA NÃO AUTORIZADA
  • 225.
    UNINOVE Engenharia de Avaliaçõese Perícias Manutenção Predial e Avaliação de Máquinas e Equipamentos  Rev. B 16/07/2011 Folha 225/424 Central de água gelada ou sistemas de refrigeração por água gelada: esse sistema é adotado para instalações com grande capacidade/demanda de refrigeração e consiste em uma central de água gelada, composta por um resfriador de líquidos (chiller), bombas para a circulação de água gelada aos condicionadores posicionados nos andares ou próximos às áreas condicionadas. O sistema de condensação do chiller pode ser arrefecido por ar ou água. O arrefecimento a ar é obtido pela ventilação mecânica forçada com ventiladores e a arrefecimento a água é obtido pela circulação de água esfriada em torres e conduzidas por bombas de condensação. Nesse sistema, o condicionador de ar resfria o ar ambiente utilizando-se da troca de calor entre a água gelada que circula em sua serpentina e o ar ambiente que passa por meio dela (condicionador tipo fan-coil). Em sistemas de grande porte, a automação é necessária para se obter um bom funcionamento. As centrais de água gelada ainda podem contemplar tanques de acumulação de gelo ou de água gelada denominados termoacumuladores, que operam com grandes “pulmões” de energia térmica, para uso em horários em que o custo da energia elétrica é alto e se torna interessante não operar os resfriadores de líquido (chillers ou centrífugas) a plena carga, diminuindo o custo da operação. Conforme a ABNT NBR 6.402, as faixas confortáveis e saudáveis de temperatura e umidade do ar para o ambiente ocupado é de:   Verão: de 24ºC a 26ºC de temperatura e de 40% a 60% de umidade relativa do ar; Inverno: de 20ºC a 22ºC de temperatura e de 35% a 65% de umidade relativa do ar. Essas faixas de temperatura podem variar de acordo com a utilização/tipo de ocupação do ambiente condicionado, como por exemplo, em museus e galerias de arte, onde se recomenda a faixa entre 20ºC e 22ºC (conforme a citada norma da ABNT). A pureza do ar é conseguida com filtros de ar e a sua distribuição no ambiente deve ser a mais homogênea possível, evitando assim a existência de pontos mais fracos ou mais quentes em um mesmo local de trabalho. Não se deve lançar o ar insuflado diretamente sobre as pessoas, e sim acima de suas cabeças, pois o ar se encontra a uma temperatura e umidade relativa alteradas. Por essas razões, ao se instalar um aparelho de janela, a melhor posição não é no parapeito da janela, e sim na parte superior, com as aletas da grelha de insuflamento direcionadas para cima. Elaborado por: Analisado por: Professor : Marcelo Gandra Falcone Alessandra Aparecida Vieira Marcelo Gandra Falcone QUANDO IMPRESSO CONSIDERAR PIRATARIA - CÓPIA NÃO AUTORIZADA
  • 226.
    UNINOVE Rev. B Engenharia deAvaliações e Perícias Manutenção Predial e Avaliação de Máquinas e Equipamentos 16/07/2011 Folha 226/424 No caso de ar condicionado central, o ar deve ser insuflado também de maneira indireta. Em sistemas de ar condicionado central, que operem com água gelada e água de condensação, torna-se importante a análise do tratamento químico dessas águas com o objetivo de preservar a instalação (reservatórios e tubulações) e o rendimento do sistema, evitando a incrustação ou depósito de algas, sujeiras em paredes de tubos ou trocadores de calor. Recomenda-se também a limpeza periódica das torres de resfriamento e um programa de purga de sua bacia, removendo sujeiras depositadas em seu fundo. Principais anomalias:  Temperatura não ajustada ao fim a que se destina e com os níveis fora do especificado pela norma da ABNT.  Fluxo de ar diretamente sobre os corpos, devendo-se ajustar as lâminas direcionadoras de ar que ficam nos equipamentos condicionadores de menor porte (aparelhos de janela e splits).  Poeira lançada pelo ar condicionado, devendo-se verificar a limpeza dos filtros de ar, e se o problema ainda persistir deverá ser avaliado o estado de limpeza de dutos e grelhas/difusores.  A existência de ruídos nos condicionadores.  Utilização de salas de máquinas para o armazenamento de produtos de limpeza ou qualquer outro fim. Recomendações e orientações técnicas:  Limpar e pintar com tinta adequada a bandeja de condensados dos condicionadores, avaliando a necessidade de tratamento com produtos bactericidas, lembrando que, conforme previsto na legislação, todos os produtos utilizados para a limpeza e tratamento de condicionadores de ar deverão ter o seu registro e aprovação junto ao Ministério da Saúde.  O condicionador de janela deve ser inclinado com sua parte mais baixa no lado do ar externo, para que o condensado não reflua para o ambiente condicionado. A sua drenagem deve ser feita com mangueira, de tal forma que não respingue água nos transeuntes.  Dependendo da condição ou região da cidade onde estiver localizado/instalado o condicionador de ar, deverá ser definida uma rotina de inspeção periódica mais intensa sobre os filtros de ar, garantindo a sua limpeza/troca e a conseqüente melhor qualidade do ar ambiente (observar a especificação do grau de filtragem adequado).  Os dutos devem ser dotados de portas de inspeção em locais convenientes para facilitar a limpeza, que pode ser feita por escovação mecânica ou sopro de ar comprimido. Existem firmas especializadas que utilizam robôs controlados e monitorados a distância (inclusive com visualização).  Outros elementos que devem ser limpos são os trocadores adequado. Isto é feito por firmas especializadas. Esse tratamento é para evitar a proliferação Elaborado por: Analisado por: Professor : Marcelo Gandra Falcone Alessandra Aparecida Vieira Marcelo Gandra Falcone QUANDO IMPRESSO CONSIDERAR PIRATARIA - CÓPIA NÃO AUTORIZADA
  • 227.
    UNINOVE Engenharia de Avaliaçõese Perícias Manutenção Predial e Avaliação de Máquinas e Equipamentos   Rev. B 16/07/2011 Folha 227/424 de algas, fungos, bactérias e protozoários, bem como a incrustação e processos corrosivos nas tubulações e equipamentos do sistema. Ao se instalar um condicionador, mesmo o de janela, deve-se cuidado para que o circuito, provocando aquecimento de fiação e deterioração do isolamento. Vale lembrar que os incêndios dos edifícios Joelma e Center 3, ambos na cidade de São Paulo, foram ocasionados por sobrecarga da rede elétrica devido à instalação de condicionadores de janela que não tinham sido previstos no projeto original. Para que não haja focos freqüentes de gripes ou rinites alérgicas, deve-se verificar inicialmente a incidência direta do fluxo de ar sobre os ocupantes (condições de temperatura e distribuição) e também a qualidade do ar condicionado na sala pela análise laboratorial específica, conforme previsto na portaria do Ministério da Saúde. Você sabia ? A medida que os edifícios foram crescendo em tamanho e tiveram seus vãos centrais eliminados, foi criado um meio ambiente propício a problemas pelo grande volume de ar contido. Equipamentos utilizados para fazer funcionar esses edifícios criaram problemas. A necessidade de sucção de ar externo, aquecimento, resfriamento, distribuição e eliminação dos subprodutos provenientes da presença humana e dos equipamentos criaram a necessidade de instalação de grande número de dutos através de todas as estruturas dos edifícios, portanto os prédios com janelas que se podem abrir e o aquecimento do vapor de água foram substituídos por estruturas com ductos de ar que eram resfriados ou aquecidos por um equipamento centralizado.. A idéia principal das primeiras construções não era eliminar a poluição interna, mas sim prevenir a infiltração da poluição externa e controlar o clima interno pela manutenção de uma temperatura adequada, purificação do ar proveniente da sucção externa e sua distribuição no edifício. Elaborado por: Analisado por: Professor : Marcelo Gandra Falcone Alessandra Aparecida Vieira Marcelo Gandra Falcone QUANDO IMPRESSO CONSIDERAR PIRATARIA - CÓPIA NÃO AUTORIZADA
  • 228.
    UNINOVE Rev. B Engenharia deAvaliações e Perícias Manutenção Predial e Avaliação de Máquinas e Equipamentos 16/07/2011 Folha 228/424 Doenças relacionadas às edificações, como absenteísmo, insalubridade, perda na qualidade de vida e na capacidade produtiva dos usuários tem sido freqüentemente associada com o tipo e uso das estruturas que as pessoas ocupam e seus costumes. Comida, bebida, excreções do organismo, e outras substâncias orgânicas propiciam o desenvolvimento de microorganismos. Uma grande diversidade de equipamentos foi introduzida, entre os quais as fotocopiadoras, luminárias. certos tipos de ar condicionado e novos materiais sintéticos para cobrir pisos e paredes e produzir mobiliário em geral. Para limpeza destas grandes superfícies de material sintético (laminados, moveis, carpetes, etc) utilizam-se produtos de limpeza de porte industrial, que podem deixar resíduos tóxicos. Filtros são usados para purificar o ar que circula no ambiente interno e em conjunto com os sistemas de dutos converteram-se em criadouros de vários tipos de microorganismos (como também os próprios carpetes). Em resumo, os edifícios modernos fechados propiciaram condições para criar um nicho ecológico complexo que se tornou uma fonte de doenças para o homem. Esses edifícios são comumente referidos como edifícios doentes e a epidemia de queixas de seus ocupantes foi definida pela Organização Mundial da Saúde como "Síndrome do Edifício Doente" (WHO42,1983). As causas da síndrome do edifício doente não são identificadas com freqüência entretanto, os sintomas costumam ser resolvidos aumentando o suprimento de ar fresco. Os resultados de 203 investigações feitas pela NIOSHI, até o fim de 1983, concluem:          40,3% à ventilação inadequada(p. ex., alta proporção de ar reciclado ou fluxo inadequado, sintomas foram atribuídos à ventilação inadequada, pouca circulação do ar, inadequado suprimento de ar fresco e precário controle da umidade e temperatura), 17,7% dos sintomas foram atribuídos à contaminação do ar pelo meio interno (p. ex., substâncias de produtos de limpeza ou fotocopiadoras), 10,3% à contaminação do ar pelo meio externo (p. ex., localização errônea dos funis de entrada de ar permitiram a aspiração de fumaça de gasolina de garagens ou estacionamentos de ônibus), 4,4% à umidade, 3,4% à contaminação por materiais de construção (p. ex., gás de formaldeído proveniente de divisórias e móveis de aglomerados, colas e resinas de carpete), 3% à pneumonite hipersensitiva (freqüentemente causada pelo desenvolvimento de microorganismos em umidificadores), 2% à fumaça de cigarro, 1,0% ao barulho e iluminação. Os 10% dos estudos restantes não identificaram uma causa específica para os sintomas. Elaborado por: Analisado por: Professor : Marcelo Gandra Falcone Alessandra Aparecida Vieira Marcelo Gandra Falcone QUANDO IMPRESSO CONSIDERAR PIRATARIA - CÓPIA NÃO AUTORIZADA
  • 229.
    UNINOVE Rev. B Engenharia deAvaliações e Perícias Manutenção Predial e Avaliação de Máquinas e Equipamentos 16/07/2011 Folha 229/424 9.11.5 SISTEMA DE AUTOMAÇÃO PREDIAL Introdução As mudanças na política econômica do país a partir dos anos 1990, com a abertura política, processo de globalização, avanço dos programas de privatização, advento dos setores siderúrgico, petroquímico, informática, serviços públicos, telecomunicações, eletricidade, transporte e saneamento, aumentaram o interesse pelo capital estrangeiro no país, e consequentemente, a demanda por espaços de escritórios de alto padrão nos grandes centros urbanos. Essa demanda, em sua maioria composta por empresas multinacionais, aliada à abertura do mercado à importação de novas tecnologias, de projetos inovadores para os padrões nacionais, arrojados em sua arquitetura, mais modernos em sua concepção tecnológica e, sobretudo, inteligentes. Existem diversos nomes e formas de se referir a um “Sistema de Automação Predial”. Em algumas oportunidades poderá ser encontrado na literatura especializada com o nome “Sistema de supervisão Predial”; em outros como “Sistema de Gerenciamento Predial”. Algumas empresas, com cultura americana, adotam o nome em inglês de “Building Management System”. Iremos utilizar a expressão Sistema de Automação Predial. O segmento da Construção Civil Brasileiro ou Internacional, praticamente com unanimidade atribui a expressão “Edifício Inteligente – EI” ou “Edifícios de Alta Tecnologia – EAT” aos edifícios que possuem “Sistema de Automação Predial”. Por sua vez, a partir do momento em que começaram a surgir edificações no Brasil, com complexos Sistemas de Automação Predial, o mercado imobiliário brasileiro rapidamente adequou os critérios e metodologias de avaliação, de modo que, atualmente, os edifícios que possuem Sistema de Automação Predial ocupam um lugar de destaque no contexto imobiliário. Tanto quanto a existência ou não de sistema de ar condicionado central, os edifícios que têm sistemas automatizados possuem comparativamente custos operacionais mais baixos do que os demais, oferecendo dessa forma ao investigador a possibilidade de receber um custo maior sobre a locação dos espaços de escritório. Mas, na prática, é difícil entender que um edifício possa “ser inteligente”. No meu modesto ponto de vista, sempre abominei essa expressão. Tenho o entendimento que “edifício inteligente” é aquele que possui os recursos tecnológicos para que possa ser gerenciado de forma inteligente. Ao longo de minha carreira profissional nessa área, nunca encontrei limitação de recursos tecnológicos para poder gerir cada vez melhor os recursos que foram Elaborado por: Analisado por: Professor : Marcelo Gandra Falcone Alessandra Aparecida Vieira Marcelo Gandra Falcone QUANDO IMPRESSO CONSIDERAR PIRATARIA - CÓPIA NÃO AUTORIZADA
  • 230.
    UNINOVE Rev. B Engenharia deAvaliações e Perícias Manutenção Predial e Avaliação de Máquinas e Equipamentos 16/07/2011 Folha 230/424 designados à minha pessoa. No entanto, é necessário possuir o interesse em utilizá-los; é necessário entender o seu funcionamento bem como a sua função dentro do contexto. Somente o tempo de convivência com a própria instalação oferece essa possibilidade. A tecnologia empregada nos Sistemas de Automação Predial é “pura” engenharia. Somente as pessoas que detêm conhecimento de engenharia ou conhecimento técnico é que podem extrair das instalações automatizadas o seu melhor rendimento, eficiência e conservação. Dessa forma, antes de apresentar uma visão geral do Sistema de Automação Predial, vamos gastar um tempo para identificar o contexto, a tecnologia atual e as tendências do segmento. Determinação do “contexto” a ser abordado Antes de prosseguirmos, é necessário possuir o conhecimento adequado dos conceitos que serão abordados ao longo deste capítulo, razão pela qual iremos examinar a seguir algumas definições importantes. O que é um edifício Inteligente ou um Edifício com Alta Tecnologia? O conceito de Edifício Inteligente é proveniente do segmento da Arquitetura. Porém, entre todas as definições que encontrei sobre o que é um Edifício Inteligente, a que considero mais adequada é feita pelo “Inteligente Buildings Institute (IBI) – Washington DC – EUA”: “Edifícios que disponibilizam um ambiente produtivo e econômico por intermédio da otimização de quatro recursos básicos:     Estrutura: vigas, lajes; cabos de energia elétrica, equipamentos etc.; Sistemas: sistemas e subsistemas quais sejam: ventilação mecânica, ar condicionado, elevadores, iluminação, circuito fechado de televisão, controle de acesso etc.; Serviços e Gerenciamento: manutenção predial, conservação e limpeza etc.; Inter-relação entre os três pontos relacionados acima. ...” Os Edifícios “inteligentes” são aqueles que possuem instrumentos para racionalizar os recursos energéticos, os quais, sendo eficientemente utilizados, irão incrementar a eficiência operacional e controle de todos os subsistemas. Atualmente, as tecnologias dos Sistemas de Automação Predial permitem que todos os subsistemas e seus respectivos equipamentos economizem energia elétrica, tenham um funcionamento seguro e confiável e principalmente Elaborado por: Analisado por: Professor : Marcelo Gandra Falcone Alessandra Aparecida Vieira Marcelo Gandra Falcone QUANDO IMPRESSO CONSIDERAR PIRATARIA - CÓPIA NÃO AUTORIZADA
  • 231.
    UNINOVE Rev. B Engenharia deAvaliações e Perícias Manutenção Predial e Avaliação de Máquinas e Equipamentos 16/07/2011 Folha 231/424 contribuam para a redução dos custos fixos. Subsistemas como iluminação podem ser controlados automaticamente, com horários pré-estabelecidos para ativação e desativação. Dessa forma, os consumos de água e energia elétrica passam a ser monitorados, evitando-se o desperdício e as multas. O software de supervisão predial é a principal ferramenta gerencial, permitindo ainda o monitoramento de imagens, controle de acesso, prevenção de incêndio, detecção de intrusão e acionamento de alarmes. Um edifício inteligente deverá conter tecnologia abrangente em microprocessadores para controlar, monitorar e operar os diversos sistemas e subsistemas tais como: iluminação, calefação (aquecimento), ventilação e ar condicionado, energia elétrica, transporte vertical, sistema de proteção contra incêndio, segurança etc. Todos esses equipamentos dependem da presença de sofisticados sistemas de telecomunicação para voz, dados e transmissão de vídeo/ imagens. As características de “inteligência” podem ser encontradas primeiramente nos ambientes de trabalho. Está provado que Edifícios Inteligentes possuem baixos custos operacionais e que certamente contribuem para a produtividade dos funcionários das empresas usuárias. Estudos demonstram que os funcionários preferem estações de trabalho que possuem um melhor controle do ambiente como um todo (exemplo: iluminação, ar condicionado, controle de acesso, segurança, transporte vertical rápido e seguro etc.). Existem mais exemplos que demonstram que tanto a vida em casa como no trabalho se tornam mais fáceis, práticas, econômicas e amistosas quando sistemas de automação assumem o controle de tarefas que as pessoas não necessitam mais executar. Dessa forma, as pessoas gradativamente têm tido a possibilidade de direcionar o seu tempo para tarefas mais confortáveis, com mais eficiência, quer seja no trabalho ou no convívio familiar ou lazer. O sistema de gerenciamento de energia elétrica, por exemplo, pode ser programado para operar automaticamente dispositivos com baixo custo energético, com preferências individuais previamente configuradas (exemplo: temperatura do ar condicionado). O consumo de energia elétrica pode ser reduzido em até 50% (estimativa) quando o sistema de automação automaticamente desliga a iluminação, reduz a refrigeração ou aquecimento quando o edifício não está sendo mais ocupado, independentemente do horário ou dia da semana. Os edifícios verdadeiramente integrados, inteligentes, possuem alguns aspectos difíceis se não praticamente impossíveis de integrar: tratam-se dos aspectos difíceis se não praticamente impossíveis de integrar: tratam-se dos dispositivos de controle que não foram concebidos para funcionarem na mesma rede lógica ou como mesmo protocolo. Entretanto, a adoção difundida do protocolo de comunicação “Lon Works” (www.echelon.com), pelas indústrias do segmento de automação predial, está criando um padrão principal/ mundial de dispositivos de monitoramento e controle, que possuem interface lógica de comunicação. Dessa forma, tem sido possível integrá-los em todos os Elaborado por: Analisado por: Professor : Marcelo Gandra Falcone Alessandra Aparecida Vieira Marcelo Gandra Falcone QUANDO IMPRESSO CONSIDERAR PIRATARIA - CÓPIA NÃO AUTORIZADA
  • 232.
    UNINOVE Rev. B Engenharia deAvaliações e Perícias Manutenção Predial e Avaliação de Máquinas e Equipamentos 16/07/2011 Folha 232/424 segmentos, como por exemplo: industrial, residencial, predial, transportes etc. Com a plataforma “LonWorks”, os dispositivos dos diversos fabricantes podem operar em conjunto Omo parte de uma única rede integrada. Os dispositivos de segurança que utilizam tecnologia “LonWorks” podem detectar a posição dos usuários em um edifício e compartilhar essas informações com o sistema de iluminação, ar condicionado ou os demais sistemas e subsistemas. A troca de informação entre os subsistemas de diversos fabricantes ocorre sem a necessidade de adaptações ou integrações complexas, reduzindo desta forma os custos usuais associados com a interconexão dos sistemas proprietários. A terminologia “sistema proprietário”, apesar de ter sido amplamente utilizada/ instalada, possui a tendência de redução ou extinção gradativa ao longo do tempo; estão sendo substituídas por sistemas de protocolo aberto “LonWorks” de comunicação. Essa tendência de mercado fará com que os sistemas tenham um custo de implantação mais baixo e uma melhor eficiência operacional em um futuro próximo. O “protocolo proprietário” torna o Cliente cativo a um determinado fabricante. Para exemplificar poderíamos citar a questão do controle de acesso. Muitos edifícios em São Paulo nem ao menos sabem utilizar protocolo fechado em seu sistema de controle de acesso. Com a necessidade de comprar um crachá para o controle de acesso é que percebem que são obrigados a comprar do mesmo fabricante do sistema. Nem sempre os preços são acessíveis, ainda mais quando estivermos tratando de um lote de 1.000 a 2.000 crachás. A mesma situação pode ocorrer com as leitoras dos referidos crachás ou com o próprio software de controle de acesso. Ainda assim, comparativamente, o sistema de acesso costuma ser o mais barato entre os subsistemas integrados no Sistema de Automação Predial. Em uma rede de “LonWorks”, nenhum controle ou arquitetura “principalescravo” será necessária. Os dispositivos inteligentes do controle comunicamse com um protocolo comum a todos. Cada “nó” na rede contém a inteligência “embarcada” que executa o protocolo e executa as funções de controle que foram solicitadas. Além disso, cada ponto central de conexão (nó) possui a condição física de ser acoplado ao “microcontrolador” do “nó”, com o meio de comunicações. Um “nó” típico em uma rede do controle de LonWorks executa uma tarefa simples. Os dispositivos “microcontroladores”, tais como sensores de proximidade, interruptores, detectores do movimento, relés, movimentações do motor e instrumentos, podem todos ser “nós” na rede; ou seja; cada um desses equipamentos possui a capacidade de se comunicar/ interagir com os demais dispositivos da rede. A rede como um todo executa uma aplicação complexa do controle, tal como funcionar uma linha de produção ou automatizar um edifício. Conectar estes dispositivos à internet certamente será, e em alguns casos já é, a próxima etapa da tecnologia de automação mundial. A internet será certamente dominada por dispositivos conectados. Para cada computador que nós interagimos diariamente em nossas vidas, diretamente ou indiretamente, com dezenas de milhares de dispositivos, tais como interruptores, sensores de movimento, válvulas, relés, máquinas de lavagem e refrigeradores, permitirá que esses bilhões de dispositivos conectados à Elaborado por: Analisado por: Professor : Marcelo Gandra Falcone Alessandra Aparecida Vieira Marcelo Gandra Falcone QUANDO IMPRESSO CONSIDERAR PIRATARIA - CÓPIA NÃO AUTORIZADA
  • 233.
    UNINOVE Rev. B Engenharia deAvaliações e Perícias Manutenção Predial e Avaliação de Máquinas e Equipamentos 16/07/2011 Folha 233/424 internet, possam gerar novas aplicações, mais distantes e mais poderosas do que as aplicações valiosas que nós vemos hoje em dia ao nosso redor. A internet de hoje será transformada. Independente do protocolo de comunicação utilizado, sempre haverá uma palavra que acompanhará a existência dos Sistemas de Automação Predial. Essa palavra, apesar de muito conhecida pelas Incorporadoras ou Construtoras, nem sempre é tratada de forma correta. Trata-se da expressão “comissionamento”. O comissionamento propriamente dito nada mais é do que, após instalar e integrar todos os sistemas e subsistemas de automação em um edifício comercial, por exemplo, testar o seu funcionamento um a um, configurar cada equipamento ou sensor a operar dentro dos parâmetros estipulados em projeto. Um comissionamento malfeito fará com que o sistema de automação predial seja subutilizado. Poderá certamente incorrer em pagamento de multas, como por exemplo, ultrapassagem da demanda contratada de energia elétrica. Também poderá ocorrer a drenagem completa dos reservatórios de água, causando grande prejuízo financeiro. O exemplo clássico de um comissionamento mal-executado seria a questão dos controles do sistema de ar condicionado. Lembramos que o sistema de ar condicionado e seus respectivos controles individuais é o único que interfere diretamente na sensação de conforte das pessoas. Mais adiante deste capítulo iremos retornar a esse ponto. Em outras palavras, um sistema de automação do sistema de ar condicionado poderá fazer com o ar seja fechado quando solicitada sua abertura (sistema VAV com atuador invertido; ou sensor de temperatura do ambiente descalibrado). Podemos observar que os danos à “operação” podem ser irreversíveis quanto à “satisfação do usuário” final. “Muitas vezes ocorre frustração irreversível pela difusão errada do conceito Edifício Inteligente” e também pela falta de conhecimento das pessoas quanto às limitações que todo Sistema de Automação Predial possui. Já o correto conhecimento da Automação Predial resulta em “prazer” e reconhecimento das melhorias que causam ao ambiente coletivo. Comissionamento – definição O comissionamento consiste no esforço conjunto do projetista e do Arquiteto do Edifício, da Construtora e do Integrador responsável pela instalação do Sistema de Automação Predial e de todos os Fabricantes dos subsistemas, no sentido de assegurar que todo o equipamento e sistemas mecânicos e elétricos estejam completamente instalados e corretamente integrados para a operação eficiente do Edifício. O trabalho de comissionamento começará somente depois que todos os subsistemas estejam em funcionamento. Terminará quando todos os testes de todos os sistemas tenham sido realizados e certificados por todos os envolvidos descritos acima. Elaborado por: Analisado por: Professor : Marcelo Gandra Falcone Alessandra Aparecida Vieira Marcelo Gandra Falcone QUANDO IMPRESSO CONSIDERAR PIRATARIA - CÓPIA NÃO AUTORIZADA
  • 234.
    UNINOVE Rev. B Engenharia deAvaliações e Perícias Manutenção Predial e Avaliação de Máquinas e Equipamentos 16/07/2011 Folha 234/424 Objetivos Este item também objetiva a abordagem dos principais aspectos relacionados ao Sistema de Automação Predial no que se diz respeito a sua estrutura padrão, utilização e subutilização, cuidados a serem observados, comissionamento etc. Tenta-se demonstrar de forma geral uma visão “macro” da arquitetura padrão/ ideal de um Sistema de Automação Predial. Principais conceitos O correto entendimento sobre Sistema de Automação Predial é: obter por intermédio de recursos tecnológicos, conforto e satisfação do usuário final com a utilização otimizada dos recursos disponíveis, principalmente energia elétrica, bem como agregar confiabilidade e qualidade aos serviços prestados, como por exemplo, o controle do sistema de ar condicionado. O gráfico a seguir demonstra o custo tarifário de energia elétrica do Brasil em comparação com diversos outros países do mundo. Elaborado por: Analisado por: Professor : Marcelo Gandra Falcone Alessandra Aparecida Vieira Marcelo Gandra Falcone QUANDO IMPRESSO CONSIDERAR PIRATARIA - CÓPIA NÃO AUTORIZADA
  • 235.
    UNINOVE Rev. B Engenharia deAvaliações e Perícias Manutenção Predial e Avaliação de Máquinas e Equipamentos 16/07/2011 Folha 235/424 Outro benefício direto que o Sistema de Automação Predial ofereceu foi a flexibilidade arquitetônica de criação dos edifícios, visto que os arquitetos puderam lançar suas criações com respaldo em conforto. Como exemplo, pode-se destacar os edifícios que possuem “pele de vidro” e controle de ar condicionado periférico próximos às fachadas. Layouts mais agressivos e repletos de interferência também puderam ser concebidos graças a flexibilidade dos sistemas de controle de ar condicionado. Quanto aos elevadores, por exemplo: o que dizer quando um elevador possui sensor de peso na cabine e este, quando lotado, avisa o elevador mais próximo para atender ao andar anterior? Ou ainda programar o sistema de gerenciamento dos elevadores a fazer o seguinte: por favor, elevadores, a partir das 8:00 horas da manhã, ao irem do térreo para os andares do edifício, retornarem ao térreo, mesmo que vazio, pois diversas pessoas estarão chagando ao edifício e irão precisar dos serviços de vocês. Trata-se da programação de subida. Há também a de descida e muitas outras. Funções de um sistema de supervisão predial O sistema de Automação Predial permite, entre outras funções, extrair as seguintes informações: Alarmes: uma vez que tenha sido verificada no controlador alguma anomalia no processo sob controle, anomalia esta que não tenha sido corrigida de forma automática pelo próprio Sistema de Automação Predial, o controlador deve evitar, por intermédio da rede lógica de comunicação, para o computador central, a informação correta, a qual deverá ser analisada pelo software da Automação Predial, resultando na emissão de um alarme, que deverá ser levado ao conhecimento do Operador do Sistema, que tomará as ações necessárias objetivando o pronto restabelecimento da funcionalidade. A mensagem é levada ao Operador por intermédio da interface gráfica ou recursos audiovisuais que o Sistema de Automação possui. Tal alarme deverá ser interpretado pelo Operador e poderá resultar na emissão de uma ordem de Serviço Corretiva a ser transmitida posteriormente para a equipe de manutenção predial ou para outros recursos que possam mitigar o problema apresentado, incluindo até mesmo o fabricante ou Integrados do Sistema de Automação Predial. Outro fator que deve ser mencionado é que o Sistema de Automação Predial possui diversos níveis de operação, todos configurados para os diversos níveis técnicos de pessoas que poderão ter acesso ao Sistema. Senhas de níveis de acesso permitem ou restrigem alterações nas principais funções e configurações do Sistema de Automação Predial, exatamente pelo fato de que a operação indevida pode causar sérios danos aos equipamentos e gerar Elaborado por: Analisado por: Professor : Marcelo Gandra Falcone Alessandra Aparecida Vieira Marcelo Gandra Falcone QUANDO IMPRESSO CONSIDERAR PIRATARIA - CÓPIA NÃO AUTORIZADA
  • 236.
    UNINOVE Rev. B Engenharia deAvaliações e Perícias Manutenção Predial e Avaliação de Máquinas e Equipamentos 16/07/2011 Folha 236/424 problemas ainda maiores. A correta determinação desses níveis de acesso é uma função importante que deve sempre ser utilizada. Seu correto uso certamente irá minimizar perda de informações vitais e comprometimento operacional. O Sistema de Automação Predial permite que o “Status” dos subsistemas seja a qualquer momento verificado quanto a, por exemplo, o estado da corrente do funcionamento de um equipamento, sua freqüência e/ ou temperatura instantâneas, ou ainda: pressões de entrada e saída da água gelada do chiller, identificando-se as informações apresentadas e confrontando-as com os parâmetros estabelecidos no próprio sistema. A operação eficiente é aquela que estabelece parâmetros comparativos de avaliação. Outro exemplo a ser mencionado seria a temperatura de um ambiente de escritório em comparação com a temperatura pré-estabelecida. Estando a temperatura instantânea de um ambiente dentro da faixa pré-estabelecida (“set-point”), não haverá alarme; estando acima ou abaixo do parâmetro estabelecido, haverá um alarme, indicando que alguma ação deve ser tomada. O Operador do Sistema poderá ter outras informações relevantes na tela a sua frente, quais sejam:     Modulação da válvula duas vias do fan-coil; Temperatura de água gelada que entra e sai do fancoil; Status de funcionamento do motor do ventilador do fan-coil; Caso o sistema possua a capacitação de operar com volume de ar variável, a freqüência de funcionamento do variador de freqüência etc. Enfim, muitas outras informações úteis poderiam ser utilizadas, desde que corretamente avaliadas. Certamente a correta avaliação irá resultar em uma ação corretiva precisa e imediata na própria configuração do Sistema de Automação Predial ou irá direcionar, com a mesma precisão, a ação a ser tomada em campo pelos técnicos competentes. Arquitetura do sistema de automação predial Basicamente, um Sistema de Automação Predial é composto pela automação individual dos seguintes subsistemas: 1. Sistema de Ar Condicionado (chillers, termoacumulação, bombas de água gelada e condensação, atuadores, válvulas, torres de resfriamento, sensores de temperatura e pressão, variadores de freqüência, compressores etc.); Elaborado por: Analisado por: Professor : Marcelo Gandra Falcone Alessandra Aparecida Vieira Marcelo Gandra Falcone QUANDO IMPRESSO CONSIDERAR PIRATARIA - CÓPIA NÃO AUTORIZADA
  • 237.
    UNINOVE Rev. B Engenharia deAvaliações e Perícias Manutenção Predial e Avaliação de Máquinas e Equipamentos 16/07/2011 Folha 237/424 2. Sistema de ventilação/ exaustão mecânica: (ar externo, copas, subsolos etc.); 3. Sistema de recalque de águas (pluvial, servida e potável); 4. Gerenciamento de Energia Elétrica (demanda, fator de potência, medidores de energia elétrica etc.); 5. Sistema de Iluminação (quadrantes, zonas etc.); 6. Sistema de Grupos Geradores e no-break; 7. Sistema contra Incêndio (sensores de fumaça, gás e termovelocimétricos etc.); 8. Sistema de Combate a Incêndio; 9. Sistema de Transporte Vertical e Escadas Rolantes; 10. Sistema de Segurança Patrimonial; 11. Sistema de Controle de Acesso (portões, cancelas e catracas eletrônicas etc.); 12. Sistema de Circuito Fechado de Televisão (C.F.T.V.); 13. Sistema de sonorização. O Sistema de Supervisão Predial permite executar a programação horária para o funcionamento de cada um dos subsistemas descritos acima, no modo automático ou manual. O Sistema de Automação Predial também reconhece automaticamente datas especiais como feriados, sábados e domingos, não efetuando a ativação de determinados sistemas (exemplo: ar condicionado nos finais de semana). Cada um dos subsistemas mencionados acima possui recursos de automação, os quais são consolidados/ agrupados em uma estação central de trabalho (computador). Existe uma rede de comunicação física entre esse computador central, com uma série de controladoras espalhadas pelo edifício, normalmente próximas de cada subsistema, e por fim, o próprio subsistema. Todos os subsistemas, por intermédio do computador central, possuem a capacidade de receberem, entre outros recursos, a programação horária para ligarem ou desligarem em horários previamente determinados. Elaborado por: Analisado por: Professor : Marcelo Gandra Falcone Alessandra Aparecida Vieira Marcelo Gandra Falcone QUANDO IMPRESSO CONSIDERAR PIRATARIA - CÓPIA NÃO AUTORIZADA
  • 238.
    UNINOVE Rev. B Engenharia deAvaliações e Perícias Manutenção Predial e Avaliação de Máquinas e Equipamentos 16/07/2011 Folha 238/424 Cada qual possui, segundo a sua natureza de atuação e função, recursos adicionais de ajuste e identificação. Como exemplo de instrumentação utilizada, temos:                Chave de nível instalada em tanques; Medidores de vazão convencional 4-20 mA; Sensores/ transdutores de pressão; Sensores de temperatura; Sensores de umidade; Válvulas e atuadores; Chaves de fluxo; Chaves fim de curso; Válvulas de expansão eletrônica; Resistências elétricas; Transdutores de corrente; Transdutores de potência; Pressostatos; Termostatos; Sensores/ transdutores de vibração. Com esses dispositivos é possível controlar/ monitorar exemplificativamente as seguintes variáveis:             Monitoração/ controle do estado ligado/ desligado dos equipamentos; Monitoração do estado local/ remoto dos comandos; Monitoração do estado de desligamento de motores por sobrecarga; Alarmes diferenciados para os pontos digitais; Alarmes de limites analógicos ultrapassados; Funções de programação horária, com controle de demanda de energia elétrica, programa de manutenção e rolagem/ revezamento de cargas ligadas, de forma a permitir a otimização do funcionamento dos equipamentos; Supervisão de pontos digitais e analógicos; Monitoração das tensões elétricas de alimentação, por fase; Monitoração da demanda instantânea de potência elétrica; Monitoração de energia elétrica consumida; Monitoração dos variadores de freqüência; Monitoração das falhas dos equipamentos; Elaborado por: Analisado por: Professor : Marcelo Gandra Falcone Alessandra Aparecida Vieira Marcelo Gandra Falcone QUANDO IMPRESSO CONSIDERAR PIRATARIA - CÓPIA NÃO AUTORIZADA
  • 239.
    UNINOVE Engenharia de Avaliaçõese Perícias Manutenção Predial e Avaliação de Máquinas e Equipamentos               Rev. B 16/07/2011 Folha 239/424 Monitoração das temperaturas do motor elétrico e mancais do compressor; Monitoração/ controle do número de partidas dos compressores por hora; Monitoração de pressões de trabalho do condensador e do evaporador; Monitoração de pressão diferencial de óleo nos compressores; Monitoração do controle de capacidade de cada compressor; Monitoração das resistências elétricas instaladas no cárter do compressor; Monitoração/ controle do degelo no evaporador; Monitoração da umidade relativa dentro da câmara frigorífica; Monitoração da posição das válvulas de bloqueio de água de condensação; Controle de “set point” de temperatura dos equipamentos; Monitoração da carga térmica requerida; Monitoração da vazão de água gelada, nas prumadas e tanques de gelo; Monitoração das chaves de fluxo de água gelada, água de condensação e ar em ventiladores e condicionadores de ar; Monitoração dos níveis do tanque de expansão. O Sistema de Automação Predial é composto por um microcomputador central tipo PC, onde um software gráfico de supervisão que monitora e/ ou controla todos os 13 subsistemas descritos acima. Entre outras funções, pode manter registro das principais variáveis, de quadros elétricos, bombas, exaustores, quadros de iluminação, níveis de caixas de água poços de águas servidas, esgoto sanitário, temperatura dos ambientes, temperatura do sistema de ar condicionado etc. O software de interface geralmente disponibiliza funções diferenciadas, as quais variam segundo cada Fabricante. No entanto, algumas funções comuns, diretamente ligadas ao controle “primário/ elementar” da edificação, estão presentes em praticamente todos. A Visualização Gráfica permite ao Operador do Sistema de Automação Predial tomar a decisão correta no momento oportuno como, por exemplo: solicitar que a equipe de manutenção tome as providências corretivas necessárias para sanar um problema apresentado por um equipamento de sistema de ar condicionado, o qual provocou a elevação de temperatura num determinado Elaborado por: Analisado por: Professor : Marcelo Gandra Falcone Alessandra Aparecida Vieira Marcelo Gandra Falcone QUANDO IMPRESSO CONSIDERAR PIRATARIA - CÓPIA NÃO AUTORIZADA
  • 240.
    UNINOVE Rev. B Engenharia deAvaliações e Perícias Manutenção Predial e Avaliação de Máquinas e Equipamentos 16/07/2011 Folha 240/424 ambiente de escritório, antes mesmo do usuário final apresentar uma reclamação. O Operador do Sistema visualiza graficamente o problema por intermédio de um alarme na tela. A mesma analogia deve ser aplicada para os demais recursos que o Sistema de Automação Predial disponibiliza. Elaborado por: Analisado por: Professor : Marcelo Gandra Falcone Alessandra Aparecida Vieira Marcelo Gandra Falcone QUANDO IMPRESSO CONSIDERAR PIRATARIA - CÓPIA NÃO AUTORIZADA
  • 241.
    UNINOVE Rev. B Engenharia deAvaliações e Perícias Manutenção Predial e Avaliação de Máquinas e Equipamentos 16/07/2011 Folha 241/424 9.12 PAISAGISMO Descrição e finalidade Paisagismo é o estudo do meio ambiente físico, de forma planejada, compondo elementos construídos e vegetais em ambientes abertos e fechados, áreas públicas e privadas. Neste estudo são levados em consideração aspectos físicos – clima, vegetação, solo e água – aspectos funcionais – acesso, circulação, uso, características da área a ser tratada, entre outros. O paisagismo complementa a arquitetura, criando ambientes agradáveis, confortáveis e saudáveis por meio da beleza de infinitas cores, formatos, texturas de folhas e flores e aromas; conforto térmico e de umidade; acessibilidade; repouso; barreira sonora; proteção contra o vento etc., além de poder contribuir com a permeabilização do solo da cidade. O conceito que muitos fazem de paisagismo é que ele se restringe apenas às espécies vegetais, o que não é correto, pois engloba também, dentre outros: pavimentação, mobiliário, vasos, espelhos d’água, equipamentos de laser e esportes, jardineiras, posteação e aparelhos de iluminação, tubulações, elementos de drenagem e irrigação. Espaços de jardins, internos ou externos, quintais ou áreas externas de um condomínio, desde que bem planejados, projetados e executados, além de permitir ao usuário ambiente para lazer, relaxamento e integração homem-natureza e, consequentemente, melhor qualidade de vida, valorizam o imóvel. Principais anomalias e recomendações As principais anomalias referentes ao paisagismo estão relacionadas com:    Não existência de projeto ou projeto deficiente, neste item incluindo a má escolha da espécie vegetal; Má execução do plantio; Falta de manutenção ou manutenção deficiente. Serão apresentados a seguir aspectos para se evitar ou minimizar anomalias. a) Projeto: Elaborado por: Analisado por: Professor : Marcelo Gandra Falcone Alessandra Aparecida Vieira Marcelo Gandra Falcone QUANDO IMPRESSO CONSIDERAR PIRATARIA - CÓPIA NÃO AUTORIZADA
  • 242.
    UNINOVE Rev. B Engenharia deAvaliações e Perícias Manutenção Predial e Avaliação de Máquinas e Equipamentos 16/07/2011 Folha 242/424 O projeto é imprescindível para o resultado final do paisagismo, inclusive influenciando na manutenção dos espaços criados e em seus objetivos finais, minimizando anomalias, devendo ser elaborado por profissional habilitado e capacitado para esse fim – paisagista. O projeto, ou falta dele, poderá acarretar sérias conseqüências na qualidade ambiental e/ou física do espaço criado, no que se refere principalmente à parte estética, sombreamento, bloqueio sonoro, permeabilidade do solo, escolha das espécies vegetais, esta de acordo com o tipo de solo e área disponível. Na seleção de árvores, arbustos e flores em um projeto paisagístico, não se pode apenas considerar a beleza plástica – folhagens, formas, flores e seu perfume, texturas e cores -, mas também o conhecimento profundo das características, hábitos de cada planta e os objetivos que almejamos alcançar com o projeto. Deve-se ter conhecimento sobre o clima; insolação necessária; tipo de solo; sistema radicular (raízes profundas ou superficiais); tronco; altura forma; copa; ramificação; galhos; folhagens perenes ou caducas; grandes ou pequenas; frutificação; floração; distâncias de plantios; resistência a pragas etc. Dois fatores são essenciais e devem ser analisados conjuntamente: o local de plantio e as características das espécies. Primeiramente deve-se ter conhecimento das condições e uso do local, se interno ou externo (de grandes ou pequenas dimensões), se em calçada etc. A escolha das espécies vegetais também dependerá da definição do local, pois suas características demandarão especificidades no projeto. Exemplos:   Quanto à altura: Verificação da altura média da planta adulta escolhida (principalmente quando em locais internos, próxima à fiação elétrica etc.), para que a mesma não tenha que ser sacrificada posteriormente; Quanto à folhagem: Algumas espécies sofrem quedas de folhas ou ramos, especialmente durante o outono e inverno, o que pode causar entupimento de calhas e canalizações, provocando infiltrações ou danos em coberturas e telhados; Elaborado por: Analisado por: Professor : Marcelo Gandra Falcone Alessandra Aparecida Vieira Marcelo Gandra Falcone QUANDO IMPRESSO CONSIDERAR PIRATARIA - CÓPIA NÃO AUTORIZADA
  • 243.
    UNINOVE Rev. B Engenharia deAvaliações e Perícias Manutenção Predial e Avaliação de Máquinas e Equipamentos 16/07/2011 Folha 243/424 FIGURA    Quanto à frutificação: lembrar que os frutos caem e, se pesados, poderão causar acidentes e soltar tinta, portanto não aconselháveis em estacionamentos e em calçadas, entretanto são árvores que atraem pássaros; Quanto à floração: coloração desejada, época da florada e perfume. Quanto a esse item é importante definir corretamente onde e em qual quantidade deve-se plantar determinada espécie, pois flores que exalam perfumes fortes podem causar intolerâncias (próximo a dormitórios, por exemplo); Quanto ao enraizamento: Devem ser evitadas espécies com grande enraizamento em locais próximos de canalizações, tubulações etc., pois pode ser prejudicial às obras de drenagem; FIGURA  Tempo de crescimento: O tempo de crescimento de cada planta é outro aspecto importante, pois algumas espécies desenvolvem-se lentamente, outras crescem mais rápido e é necessário respeitar esses prazos. Projeta-se o plantio de árvores considerando sua dimensão adulta, com Elaborado por: Analisado por: Professor : Marcelo Gandra Falcone Alessandra Aparecida Vieira Marcelo Gandra Falcone QUANDO IMPRESSO CONSIDERAR PIRATARIA - CÓPIA NÃO AUTORIZADA
  • 244.
    UNINOVE Rev. B Engenharia deAvaliações e Perícias Manutenção Predial e Avaliação de Máquinas e Equipamentos 16/07/2011 Folha 244/424 espaçamento de 5 m, 10 m ou mais de 10 m. Em caso de bosque o plantio deverá ser com distanciamento menor entre as árvores, de modo que as mesmas se sobreponham para dar impressão de mata densa. Também nesse item de projeto cabe destacar que:     O revestimento do piso deve ser definitivo em projeto de acordo a indicação técnica do revestimento, uso e espaço a ser criado, considerando aspectos quanto à característica escorregadia, texturas, possibilidade de destacamento de placas de pisos, desgaste, cores etc.; A escolha do equipamento de lazer, em especial playground, deve ser cuidadosa e definida quanto ao local de implantação (local sombreado e amplo, que proporcione segurança às crianças etc.), bem como às manutenções exigidas. O equipamento de lazer é tratado em item específico deste livro; Jardineiras merecem atenção especial quanto à impermeabilização e drenagem, necessitando serem bem projetadas e executadas, caso contrário podem causar infiltrações em paredes e lajes; Em jardins internos, além do problema de infiltrações, deve-se ter atenção quanto à luminosidade no local, já que a falta desta limita o crescimento das plantas e, quanto à aeração, pois baixa aeração no ambiente aumenta a incidência de pragas e doenças. Deve-se efetuar projeto e planejamento cuidadoso do paisagismo, para que, após o plantio executado, não seja necessário “arrancar” as plantas por estarem “atrapalhando” a passagem, “sujando” o piso, entupindo calhas, raízes quebrando pisos etc. b) Plantio: Ao selecionar espécies para o plantio deve-se procurar mudas isentas de pragas ou doenças, com boa formação e de preferência novas, pois as velhas se recuperam muito devagar. Dependendo do porte da muda e da qualidade do solo, a cova deve ser aberta com medidas apropriadas e devidamente adubada para permitir a adaptação da muda e um bom desenvolvimento inicial (2/3 de terra de boa qualidade e 1/3 de adubo orgânico bem curtido). Este procedimento deverá ser feito alguns dias antes do plantio, para permitir sua inoculação por micro-organismos. O preparo do solo pressupõe limpeza do terreno e, para tanto, deve-se remover todo material prejudicial ao desenvolvimento e manutenção da vegetação, ou seja, tocos, materiais não biodegradáveis, materiais ferruginosos, entulho de obra, entre outros. Nas áreas que tenham sido Elaborado por: Analisado por: Professor : Marcelo Gandra Falcone Alessandra Aparecida Vieira Marcelo Gandra Falcone QUANDO IMPRESSO CONSIDERAR PIRATARIA - CÓPIA NÃO AUTORIZADA
  • 245.
    UNINOVE Rev. B Engenharia deAvaliações e Perícias Manutenção Predial e Avaliação de Máquinas e Equipamentos 16/07/2011 Folha 245/424 compactadas por ocasião da execução de obras civis, os terrenos devem ser submetidos a uma aragem profunda, além de drenagem. FIGURA No plantio, as embalagens e acondicionantes (latas, sacos plásticos etc.) deverão ser cuidadosamente removidas, evitando-se afetar o raizame. Cada árvore será fincada a um tutor de 2 m de altura, de madeira ou bambu, para evitar que o vento a abale, com amarração ao tronco por ráfia ou barbante (jamais arame!), de modo que a planta e o tutor sejam interligados por uma laçada folgada, em forma de oito; o material da amarração deverá ser substituído à medida que se apresentar danificado e sem condições de proteger a muda. Pressupõem-se também a análise preliminar do solo com determinação, no mínimo, do pH (grau de acidez). A época adequada para o plantio é o início do período de chuvas, portanto, fora desse período a rega das mudas deverá ser diária, por um período de dois meses após o plantio. Elaborado por: Analisado por: Professor : Marcelo Gandra Falcone Alessandra Aparecida Vieira Marcelo Gandra Falcone QUANDO IMPRESSO CONSIDERAR PIRATARIA - CÓPIA NÃO AUTORIZADA
  • 246.
    UNINOVE Rev. B Engenharia deAvaliações e Perícias Manutenção Predial e Avaliação de Máquinas e Equipamentos 16/07/2011 Folha 246/424 FIGURA Deve-se comprar apenas mudas sadias, adquiridas de viveiristas idôneos, com o mínimo de três pernadas bem espaçadas e alternadas (1). Para a arborização o tronco deve estar livre de ramos até 1,80 m – 2,00 m (2). O transplante deve ser realizado de preferência em dia nublado ou úmido (3).As raízes das mudas devem ser conservadas úmidas, por irrigações periódicas do torrão e a embalagem da muda retirada por ocasião do plantio (4). Após o plantio, é muito importante a proteção da muda por meio de gradil de madeira, por exemplo, contra veículos, animais etc. (5) No plantio de um gramado, primeiramente deve-se decidir o tipo de grama a ser plantada, dependendo do local o objetivo desejado. Receberão após o plantio uma camada de terra de cobertura, de espessura aproximada de 2 cm, para sua regularização e preenchimento de interstícios entre as placas. Cabe destacar que nem todas as variedades crescem sob qualquer condição climática. Elaborado por: Analisado por: Professor : Marcelo Gandra Falcone Alessandra Aparecida Vieira Marcelo Gandra Falcone QUANDO IMPRESSO CONSIDERAR PIRATARIA - CÓPIA NÃO AUTORIZADA
  • 247.
    UNINOVE Rev. B Engenharia deAvaliações e Perícias Manutenção Predial e Avaliação de Máquinas e Equipamentos 16/07/2011 Folha 247/424 c) Manutenção: As mudas plantadas devem ser regularmente observadas para que se possa avaliar o seu desenvolvimento e tomar as medidas necessárias para correção de distorções no crescimento. Serão verificados, principalmente se estão ocorrendo ataque de pragas e doenças, brotações, ramificações indesejáveis etc. Algumas pragas de jardim e recomendações: 1. Combate adequado a pragas e doenças: Apesar deste tema ser motivo de capítulo específico deste livro, as principais pragas que atacam as plantas são: cochonilhas, lesmas, caracóis, lagartas, formigas e pulgões e, a melhor forma de combatê-las é com a prevenção. Cochonilhas: São pequenos pontos brancos, pretos ou marrons que se alojam nas folhas e galhos atacando as plantas e sugando a seiva. Aconselha-se retirar de forma manual com algodão ou pano embebido em álcool. Lesmas/Caracóis/Lagartas: Essas três pragas atacam a planta se alimentando das folhas; nos três casos aconselha-se a retirada manual. Usar luvas, pois algumas lagartas podem queimar as mãos. Formigas: Costumam se alimentar das folhas. Para combatê-las, além de se identificar e destruir o formigueiro, pode-se aplicar em um pano poroso um preparado com pimenta macerada e álcool e amarrá-lo no tronco da planta, sem apertar demais. Pulgões: Essa praga aloja-se nos troncos das plantas e os deixam melados, muitas vezes aparecem também na folhagem. São pontos pretos, marrons e brancos, de tamanho pequeno e sugam a seiva da planta. Devem ser retirados, com pano e/ou algodão embebidos em álcool, um a um. Algumas vezes é necessário repetir o procedimento durante algumas semanas, dependendo de como a praga estiver proliferada. Borrifar as folhas e os galhos com calda de fumo + álcool melhora a eficiência do combate. 2. Para prevenção de pragas aconselha-se conferir regularmente ambas as faces das folhas para detectar se estão livres de manchas. Também é importante verificar os galhos e notar se estão melados ou se possuem pontinhos pretos, marrons ou brancos (tipo algodão). Galhos secos e folhas amarelas devem ser eliminados. Elaborado por: Analisado por: Professor : Marcelo Gandra Falcone Alessandra Aparecida Vieira Marcelo Gandra Falcone QUANDO IMPRESSO CONSIDERAR PIRATARIA - CÓPIA NÃO AUTORIZADA
  • 248.
    UNINOVE Rev. B Engenharia deAvaliações e Perícias Manutenção Predial e Avaliação de Máquinas e Equipamentos 16/07/2011 Folha 248/424 3. A qualidade da terra comprada também é muito importante, pois muitas vezes ela já está contaminada com ervas daninhas e pragas. Por isso, recomenda-se a compra de terra de boa qualidade. 4. Quando a infestação não é muito grande, pode-se eliminar as ervas daninhas de forma manual, de preferência com auxílio da ferramenta “Firmino”, arrancando as mesmas da raiz, caso contrário utilize herbicidas. 5. A poda correta de um gramado e a freqüência da mesma auxilia no bom desenvolvimento da grama. 6. Na rega do gramado não deve ocorrer empoçamento ou deixar áreas ressecadas e, também, não ser superficial, pois o sistema radicular da grama possui, no mínimo, 10 cm de altura. 7. Após o uso, lavar as ferramentas com água e sabão, além de passar álcool em equipamentos de corte, para evitar a disseminação de doenças. 8. O preparo da terra e o plantio devem ser executados por profissional jardineiro, o qual poderá particularizar o tratamento para cada tipo de solo a cada espécie vegetal. Curiosidade e dicas 1. Segundo o Código de Obras do Município de São Paulo, Lei nº 11.228 de 25 de junho de 1992, para se assegurar as condições naturais de absorção das águas pluviais no lote, deverá ser reservada no mínimo 15% da área do terreno livre de pavimentação ou construção, ou seja, área destinada à permeabilidade do solo; 2. A vegetação é tão importante que pode alterar consideravelmente a diferença de temperatura entre diferentes regiões de uma cidade; 3. Árvores frutíferas atraem pássaros e, dependendo da espécie, podem ser cultivadas até em vasos de 60 cm de diâmetro (ex.: jabuticabeira, romã e pitanga), desde que em ambientes ensolarados; 4. Escolher árvores cujo porte e raízes se desenvolvam sem causar prejuízos a pisos internos e calçadas; 5. Na aquisição de uma planta deve-se saber o local onde a mesma será plantada, se em local de sol ou sombra; plantas de sol ficam feias e não se desenvolvem em locais de sombra e vice-versa; 6. No plantio, as mudas devem ser enterradas com o torrão (terra que envolve a raiz) e este deve estar firme e intacto, evitando-se as raízes nuas; Elaborado por: Analisado por: Professor : Marcelo Gandra Falcone Alessandra Aparecida Vieira Marcelo Gandra Falcone QUANDO IMPRESSO CONSIDERAR PIRATARIA - CÓPIA NÃO AUTORIZADA
  • 249.
    UNINOVE Rev. B Engenharia deAvaliações e Perícias Manutenção Predial e Avaliação de Máquinas e Equipamentos 16/07/2011 Folha 249/424 7.Algumas épocas de plantio: Quaresmeira: início da primavera; Pata de vaca: verão; Azálea: início da primavera; Dracena: primavera; Hortênsia: fim de março; Lírio da paz: primavera; 8. As mudas, na véspera e após o plantio, deverão receber abundante rega, assim como até as respectivas pegas; 9. Para o plantio, deve-se saber se a terra está boa para plantar. Para tanto, deve-se retirar punhados de terra de diferentes pontos do jardim, com profundidade de 15 cm a 20 cm. O nível de acidez da terra (pH) deve oscilar entre 6 e 7. Há lojas especializadas e faculdades de agronomia que podem fazer essa análise; 10. Nos gramados e forrações, proceder à rega diária na fase de enraizamento e corte periódico, com aproveitamento de parte da grama cortada como adubo; 11. Plantar as mudas ou placas de gramas o mais próximo possível uma das outras, pois um gramado denso evita a proliferação de ervas daninhas; 12. As gramas rasteiras formam um gramado melhor para áreas de tráfego intenso; 13. Árvores, arbustos e trepadeiras devem receber a poda de limpeza ao menos uma vez por semestre, para retirada dos ramos e galhos quebrados, doentes ou secos; 14. Limpar a área do terreno junto às espécies quanto a brotações e ramificações indesejáveis; 15. Todas as espécies devem receber adubação anual de restituição; 16. Casca de ovo, casca de laranja, banana etc., “borra” do café, folhas de plantas e árvores e serragem de madeira são ótimos nutrientes para as plantas, entretanto não colocá-los diretamente na terra junto à planta, pois durante a decomposição podem prejudicá-la, tirando os nutrientes. Para que isso não ocorra deixe o material se decompor antes da colocação na planta (enterrando o material, alternando com terra e serragem); 17. Há adubos apropriados para cada espécie vegetal. Normalmente o adubo deve ser colocado uma vez por mês; 18. Não molhe as flores quando for pulverizar a planta; 19. A primavera é a época do ano mais indicada para a adubação, que deve ser feita uma semana antes do plantio e, de preferência, combinando os três Elaborado por: Analisado por: Professor : Marcelo Gandra Falcone Alessandra Aparecida Vieira Marcelo Gandra Falcone QUANDO IMPRESSO CONSIDERAR PIRATARIA - CÓPIA NÃO AUTORIZADA
  • 250.
    UNINOVE Rev. B Engenharia deAvaliações e Perícias Manutenção Predial e Avaliação de Máquinas e Equipamentos 16/07/2011 Folha 250/424 tipos de adubo: orgânico (húmus, esterco e farinha de ossos), mineral (calcário) e químico (nitrogênio, fósforo e potássio); 20. Adubos químicos, como o NPK, podem queimar o gramado. Por isso, recomenda-se diluir o produto em água e regar a grama logo após o seu uso; 21. Aconselha-se revolver a terra para que ela se oxigene. Isso pode ser feito em conjunto com a adubação; 22. Existem inúmeras espécies vegetais que embora sejam ornamentais, conhecidas e apreciadas, apresentam caráter tóxico, ou seja, plantas que quando ingeridas causam danos ao homem ou animais, entre elas: comigo ninguém pode; coroa de cristo, cróton, fícus, saia branca, mamona, arruda, jasmim manga. Tais espécies não devem ser plantadas especialmente em locais próximos a acessos de crianças (playground), jardins públicos e interiores de residências; 23. Para prevenção de pragas aconselha-se conferir regularmente se as folhas estão livres de manchas. Também verificar ambos os lados para manter o controle sobre as pragas. É importante verificar os galhos e notar se eles estão melados ou se possuem pontinhos pretos, marrons ou brancos. Galhos secos e folhas amarelas devem ser eliminados, bem como comprar terra de qualidade, pois pode vir já contaminada; 24. Em estacionamentos, para proporcionar sombreamento, utilizar espécies que não tenham raízes superficiais e agressivas e, também, grandes frutos ou frutos que soltam tinta; 25. Evitar acúmulo de água nos pratos de apoio das plantas e vasos, pois pode causar apodrecimento das raízes e conseqüente morte das plantas, além de acumular água e assim, se transformar em foco de proliferação do mosquito da Dengue; 26. Em relação à prevenção da Dengue: a) não deixar água parada mesmo que limpa, em qualquer recipiente; b) retirar a água do recipiente e lavá-lo com água e sabão; c) a Bromélia acumula água em sua roseta, podendo abrigar ovos e larvas de mosquitos, caso essa água esteja limpa e estagnada. Visto que o ciclo larval do Aedes Aegypti é de uma semana, recomendase que a água acumulada na roseta seja renovada semanalmente com jato de água lançado por mangueira sobre a planta. Pode-se, também, pulverizar as Bromélias com calda de fumo, que é um inseticida natural eficiente e não prejudica a planta. Elaborado por: Analisado por: Professor : Marcelo Gandra Falcone Alessandra Aparecida Vieira Marcelo Gandra Falcone QUANDO IMPRESSO CONSIDERAR PIRATARIA - CÓPIA NÃO AUTORIZADA
  • 251.
    UNINOVE Rev. B Engenharia deAvaliações e Perícias Manutenção Predial e Avaliação de Máquinas e Equipamentos 16/07/2011 Folha 251/424 Você sabia?  Que o profissional especializado em paisagismo é denominado “arquiteto paisagista”?  Que o horário ideal de rega, principalmente no verão, é de manhã cedo ou à tardinha, quando o sol está mais fraco?  Que para uma manutenção menos onerosa, pode-se substituir a grama por espécies tipo forração?  Que árvores com folhas “caducas” são aquelas que perdem suas folhas e que em países de clima frio, o outono é considerado uma das estações mais bonitas, justamente por causa delas?  Os nomes comuns, ou vulgares, das espécies vegetais variam de acordo com o país, a região e até mesmo de uma pessoa para outra? Ao contrário, os nomes científicos são regulamentados pelo Código Internacional de Nomenclatura Botânica Elaborado por: Analisado por: Professor : Marcelo Gandra Falcone Alessandra Aparecida Vieira Marcelo Gandra Falcone QUANDO IMPRESSO CONSIDERAR PIRATARIA - CÓPIA NÃO AUTORIZADA
  • 252.
    UNINOVE Rev. B Engenharia deAvaliações e Perícias Manutenção Predial e Avaliação de Máquinas e Equipamentos 16/07/2011 Folha 252/424 9.13 Controle de pragas urbanas Descrição do Sistema São conhecidas como pragas urbanas as formigas, ratos, pombos, cupins, brocas etc., ou qualquer animal indesejável ao meio. Podemos dividi-las em dois grupos: as prejudiciais à saúde das pessoas e as que são prejudiciais à saúde das edificações; tanto uma como outra podem provocar danos irreparáveis. Incluem-se no primeiro grupo: baratas, formigas, ratos, pombos, abelhas, marimbondos etc., e no segundo grupo: as brocas, os cupins etc. Se pensarmos nas nossas edificações como organismos vivos, veremos que as pragas urbanas são como doenças que, se tratarmos preventivamente ou tão logo identificadas, obteremos os melhores resultados e menores prejuízos. As pragas urbanas de maneira geral aproveitam-se de nossas negligências para sua sobrevivência e disseminação. Sendo assim, para obtermos sucesso no controle de qualquer praga devemos eliminar no mínimo um dos três fatores vitais para a sua sobrevivência, que são: o alimento, o acesso ou o abrigo. Portanto, desde o projeto devemos pensar nas pragas, em como evitar acesso ou abrigo por meio de detalhes construtivos e arquitetônicos e sistemas de controle. Finalidade Apresentar técnicas e procedimentos para prevenir, amenizar e/ou controlar as pragas urbanas. Principais características, medidas preventivas Recomendações e orientações técnicas: e de controle. Para compreender e poder prevenir ou curar as patologias oriundas por agentes bióticos, vamos descrever hábitos e características das pragas e respectivos métodos de controle, enfocando as de maior incidência e que causam maiores danos, como algumas espécies de cupins, brocas ou carunchos, fungos apodrecedores, ratos e pombos. Qualquer ambiente, seja de produção, residencial, lazer etc., está sujeito ao ataque de pragas e sua presença e proliferação estão diretamente ligadas aos seguintes fatores:    Abrigo necessário para seu desenvolvimento, reprodução e permanência; Alimento disponível para sua manutenção e sobrevivência; Acesso e facilidades de entrada e invasão do ambiente. Elaborado por: Analisado por: Professor : Marcelo Gandra Falcone Alessandra Aparecida Vieira Marcelo Gandra Falcone QUANDO IMPRESSO CONSIDERAR PIRATARIA - CÓPIA NÃO AUTORIZADA
  • 253.
    UNINOVE Rev. B Engenharia deAvaliações e Perícias Manutenção Predial e Avaliação de Máquinas e Equipamentos 16/07/2011 Folha 253/424 Para a prevenção de várias dessas pragas, sistemas de prevenção, detalhes construtivos e arquitetônicos, identificação das espécies, e principalmente do conhecimento da biologia e hábitos das pragas, promoverão resultados mais eficientes. Esses conhecimentos, aliados a ações preventivas, monitoramento das áreas, inspeções regulares, localização de ninhos (no caso de formigas, cupins etc.), locais adequados para o armazenamento de lixo e detritos, sejam nas edificações ou em áreas livres, contribuirão para um controle eficaz e seguro. O controle de pragas curativo poderá ser realizado por intervenções químicas, utilizando equipamentos de alta tecnologia e produtos de eficácia comprovada. Estes são bastantes seguros e eficientes, mas nunca serão tão eficazes e seguros como os métodos preventivos. Xilófagos Existem muitas ordens de insetos xilófagos (xilo=madeira,fagos=alimento), sendo que a ordem dos Isópteros e dos Coleópteros contêm as espécies de maior incidência e de maior poder de destruição no meio urbano. Os cupins são da Ordem Isóptera, onde encontramos as espécies de insetos mais agressivas. No Brasil podemos encontrar cerca de 800 espécies de cupins, mas adaptadas ao meio urbano iremos encontrar apenas algumas dezenas, que subdividiremos em dois grupos, para facilitar o estudo: cupins subterrâneos ou de solo e cupins de madeira seca. Cupim subterrâneo – Características Podemos encontrá-los em todo o território brasileiro, tanto espécies nativas (oriundas de nosso ecossistema) ou exóticas (migraram de outros países ou continentes). Entre as espécies exóticas encontramos as que causam os maiores prejuízos e se adaptaram muito bem ao meio urbano e ao nosso clima. Como seus predadores naturais não estão presentes ao meio urbano, essas espécies se multiplicam e se disseminam sem controle. Nomeamos esse grupo de espécies por cupins subterrâneos ou cupins de solo, pois no ambiente natural o ninho se aloja no subsolo, mas se alimentam do cerne ou galhos de árvores, desgastando-os até não resistirem seu peso e caírem. Esses insetos procuram alojar-se em áreas úmidas, saindo em busca de alimento para sobreviverem. Quando invadem as edificações, podem construir seus ninhos ou abrigarem-se nas lajes duplas ou entulhadas, caixões perdidos, shafts, paredes, jardineiras, prumadas hidráulicas etc. Elaborado por: Analisado por: Professor : Marcelo Gandra Falcone Alessandra Aparecida Vieira Marcelo Gandra Falcone QUANDO IMPRESSO CONSIDERAR PIRATARIA - CÓPIA NÃO AUTORIZADA
  • 254.
    UNINOVE Rev. B Engenharia deAvaliações e Perícias Manutenção Predial e Avaliação de Máquinas e Equipamentos 16/07/2011 Folha 254/424 Esses insetos são sensíveis à luz, se abrigam e se locomovem por locais escuros e protegidos, tornando-se praticamente invisível ou difícil de perceber a sua presença. De uma maneira geral, prevenir uma infestação de qualquer praga implica eliminar pelo menos um desses fatores, locais de abrigo, de acesso dessa praga ao ambiente ou a indisponibilidade de alimento e água. Os cupins subterrâneos, para acessarem as edificações, se aproveitam das fissuras ou falhas já existentes na estrutura ou alvenaria, assim como juntas de dilatação, os conduítes, dutos ou shafts hidráulicos etc. ou os demais componentes do edifício. Mas também podem perfurar o concreto para acessar uma determinada área, quando esse é obstáculo entre a colônia e a madeira, por isso são conhecidos por CUPINS DE CONCRETO. No ponto particular em que o ninho está diretamente em contato com a alvenaria o dano pode ser maior, havendo perfuração mais intensa em componentes como tijolos de barro. As secreções e subprodutos da atividade vital dos cupins causam alteração na resistência da alvenaria e do concreto pela oxidação da ferragem quando em contato direto com a colônia. Os cupins são insetos sociais e representam o melhor exemplo de uma sociedade bem organizada, na qual cada indivíduo tem uma função específica e importante para a sobrevivência do termiteiro (cupinzeiro). Para cumprir essas funções os indivíduos de uma mesma colônia se diferenciam morfologicamente (na sua forma), formando três castas; os reprodutores, os operários e os soldados. Reprodutores são os chamados reis e rainhas, conhecidos pela população por aleluias. Voam aos milhares, geralmente na primavera, em direção às luzes. Após o vôo nupcial, cada casal tentará dar início a uma nova colônia, aninhando-se no solo (terra), jardins, jardineiras, nas alvenarias, entulhos colocados no interior de lajes etc., e irão permanecer abrigados no termiteiro ou cupinzeiro e então sua única função é a reprodução. Uma rainha pode colocar mais de 10.000 ovos por dia e viver 20 anos ou mais, dependendo da espécie (caso venha a morrer poderá ser substituída por um ou outros casais reais, permanecendo a colônia ativa por centenas de anos). Operários são os responsáveis pela construção e manutenção do ninho, mas sua principal função é buscar o alimento e distribuí-lo a todos os indivíduos da colônia, inclusive as larvas e ninfas. O alimento é a celulose conseguida por meio da madeira, papel, couro etc. Para obtê-lo, esses indivíduos irão invadir qualquer tipo de edificação, utilizando como via de acesso jardins, redes elétricas, hidráulicas, telefonia, juntas de dilatações, entre outros, ou, caso seja Elaborado por: Analisado por: Professor : Marcelo Gandra Falcone Alessandra Aparecida Vieira Marcelo Gandra Falcone QUANDO IMPRESSO CONSIDERAR PIRATARIA - CÓPIA NÃO AUTORIZADA
  • 255.
    UNINOVE Rev. B Engenharia deAvaliações e Perícias Manutenção Predial e Avaliação de Máquinas e Equipamentos 16/07/2011 Folha 255/424 necessário, até mesmo perfurado lajes, vigas ou cortinas de concreto etc. Por isso são chamados de cupins de concreto (seu território de ação pode atingir mais de 800 metros de raio por um complexo sistema de túneis). Nessa invasão ou locomoção, quando utilizam as redes elétricas, informática ou de telefonia, acabam destruindo o plástico isolante dos cabos, ocasionando curto-circuito, incêndios, comprometendo essas redes. Esses insetos também podem trafegar pelas mantas de impermeabilização e nesse caso irão provocar perfurações nas mantas e consequentemente infiltrações, que podem indiretamente comprometer estruturas de concreto ou outros danos. A fim de se locomoverem constroem túneis subterrâneos, por dentro de paredes e mais raramente um túnel de terra sobre paredes, ou frestas e, assim, podem ser detectados sinais de sua presença a olho nu. FIGURA – (PRAGAS Urbanas. Disponível em http://www.pragas.com.br. Acesso em: 08 abril 2004) Túneis; sinal típico de ataques dos cupins subterrâneos. Feitos de uma argamassa de terra, fezes e saliva, que os protegem de predadores, regula umidade e temperatura e outros contratempos. Como eles comem as madeiras de dentro para fora, é muito difícil detectá-los. Se forem estruturas de madeiras como estuques, telhados etc., costumam ruir antes de se perceber a infestação, provocando acidentes que às vezes são fatais. A casta dos soldados é responsável pela proteção da colônia, contra inimigos naturais e invasão de seu território por outras colônias. Como podemos observar, esses são os melhores exemplos de uma sociedade muito bem organizada, possuindo vários mecanismos para manter a sobrevivência da colônia e espécie, podendo uma colônia permanecer ativa por centenas de anos, crescendo e se multiplicando. Portanto, qualquer edificação está sujeita ao ataque dessas pragas; temos que tomar todas as medidas de prevenção disponíveis, e no caso de infestações nunca combatê-las sem antes estudá-las devidamente, pois quando aparecem, isso é apenas a ponta de um “ iceberg”. Substituir móveis ou peças de madeira atacadas é como trocar o prato de comida. Elaborado por: Analisado por: Professor : Marcelo Gandra Falcone Alessandra Aparecida Vieira Marcelo Gandra Falcone QUANDO IMPRESSO CONSIDERAR PIRATARIA - CÓPIA NÃO AUTORIZADA
  • 256.
    UNINOVE Rev. B Engenharia deAvaliações e Perícias Manutenção Predial e Avaliação de Máquinas e Equipamentos 16/07/2011 Folha 256/424 Outro ponto importante, como já vimos, é que quando esses insetos são detectados em um edifício, provavelmente a colônia já invadiu, ou está instalada nos espaços internos da estrutura do edifício, se manifestando em um armário, batente etc. de um apartamento ou conjunto, por isso tratamentos localizados não resolvem, dissemina a infestação para outras partes ou apartamentos. O ninho está alojado na área interna do edifício, que é área comum e provoca danos nas áreas privativas, que são os armários, batentes etc. dos apartamentos. Nesse caso a responsabilidade é do condomínio. Patologia provocada por cupins Os cupins podem provocar danos de impacto recuperável, parcialmente recuperável ou irrecuperável. Impacto recuperável é quando, por exemplo, um ataque de cupins subterrâneos é detectado inicialmente por uma trilha na parede ou uma árvore, quando ainda não invadiu a estrutura da edificação e não atacou peças de madeiras ou mobiliários. Parcialmente recuperável é quando houver ataque em madeiras, mobiliários, estruturas, e a parte atacada não compromete funções mecânicas ou físicas a que essa peça esteja sujeita. Então elas são submetidas a um tratamento para erradicar a infestação. Irrecuperável é quando o ataque provocado compromete a resistência mecânica a que a peça está submetida e deverá ser substituída. Esses danos em estruturas de telhado, estuques e outras são comuns e de risco crítico à edificação e seus ocupantes. No caso de ataque de cupins subterrâneos a manta de impermeabilização ou as redes elétricas também provocam risco crítico, de incêndio nas redes elétricas e de corrosão ou danos às estruturas por infiltrações. Os cupins podem provocar anomalias de ordem natural, ou por falhas de planejamento e de execução de manutenções, aliado a procedimentos e falta de prevenção ou de sistemas de controle que deveriam ser instalados ou efetuados na edificação desde a sua construção. Fatores que favorecem o ataque: Os fatores mais comuns que favorecem a infestação por cupins em uma edificação são madeiras de formas abandonadas, entulhos de construção em aterros, espaços vazios ou entulhados nas estruturas; solos com materiais orgânicos (como raízes), condições de umidade (impermeabilização danificada, redes hidráulicas vazando, áreas mal drenadas). Elaborado por: Analisado por: Professor : Marcelo Gandra Falcone Alessandra Aparecida Vieira Marcelo Gandra Falcone QUANDO IMPRESSO CONSIDERAR PIRATARIA - CÓPIA NÃO AUTORIZADA
  • 257.
    UNINOVE Rev. B Engenharia deAvaliações e Perícias Manutenção Predial e Avaliação de Máquinas e Equipamentos 16/07/2011 Folha 257/424 Alguns exemplos de procedimentos a serem observados:     Alterações físicas, incluindo eliminação de pontos de contato da madeira com o solo como locais onde pisos de madeira, batentes ou outras estruturas de madeira encontram-se em contato constante com o solo ou alvenaria (fácil acesso entre o local da colônia e a fonte de alimento); Remoção de toda a madeira e o entulho com celulose da edificação e da área a ser construída, troncos, raízes de árvores, madeiramento de escora de contensão, fôrmas etc.; Tratamento preventivo de toda a madeira que permanecer fixada na alvenaria ou estrutura; Redução do excesso de umidade. Como controlar: O primeiro passo é sempre utilizar medidas e métodos preventivos, a fim de evitar a invasão. Estratégias básicas devem ser consideradas para se controlar cupins subterrâneos: Sistemas de controle permanente:    Alteração física: qualquer medida que faça com que a edificação fique menos susceptível ao acesso ou invasão de cupins; Tratamento do solo ou barreira química; Tratamento da madeira fixa à edificação. Obs.: Devido aos riscos inerentes ao tratamento, o controle de cupins subterrâneos requer obrigatoriamente a contratação de uma empresa especializada para a realização do serviço. Métodos Preventivos contra infestações de CUPINS SUBTERRÂNEOS. O método a ser escolhido deve ser compatível com o tipo de edificação, ter eficiência comprovada, poder controlar a praga a qualquer tempo, ser seguro ao meio ambiente etc. São três os métodos preventivos disponíveis hoje no mercado, mas todos apresentam pontos positivos e negativos, que dissertaremos a seguir. Elaborado por: Analisado por: Professor : Marcelo Gandra Falcone Alessandra Aparecida Vieira Marcelo Gandra Falcone QUANDO IMPRESSO CONSIDERAR PIRATARIA - CÓPIA NÃO AUTORIZADA
  • 258.
    UNINOVE Rev. B Engenharia deAvaliações e Perícias Manutenção Predial e Avaliação de Máquinas e Equipamentos 16/07/2011 Folha 258/424 O primeiro método a ser abordado é o SISTEMA PERMANENTE DE CONTROLE formado por uma rede de irrigação implantada estrategicamente no solo. FIGURA – (PRAGAS Urbanas. Disponível em http://www.pragas.com.br. Acesso em: 08 abril 2004) Essa rede deve ser instalada em todo o perímetro externo e interno da edificação, paralela a todas as paredes ou baldrames em contato com o solo, pelos dois lados (quando possível) e também linhas paralelas sob os pisos nos ambientes térreos. Essas redes também devem ser instaladas junto às cortinas de contensão em construções ou garagens subterrâneas, assim como entre paredes duplas ou geminadas. Os pontos positivos desse sistema:        O sistema é permanente, a qualquer tempo e necessidade permite repor os produtos que formarão as barreiras químicas no solo; Protege com deficiência e edificação contra essas pragas; Permite utilizar baixas quantidades de produtos e de menor poder residual, sendo mais seguros ao meio ambiente (pode-se optar por produtos biológicos); Para efetuar o tratamento não é preciso perfurar pisos e paredes, evitando prejuízos à edificação; O ambiente não precisa ser desocupado, podendo ser usado normalmente, inclusive durante o período do serviço; Para realizar os serviços de reposição não é necessário adentrar a edificação; O tempo de serviço para tratamentos futuros diminui pelo menos em 80%; Elaborado por: Analisado por: Professor : Marcelo Gandra Falcone Alessandra Aparecida Vieira Marcelo Gandra Falcone QUANDO IMPRESSO CONSIDERAR PIRATARIA - CÓPIA NÃO AUTORIZADA
  • 259.
    UNINOVE Engenharia de Avaliaçõese Perícias Manutenção Predial e Avaliação de Máquinas e Equipamentos      Rev. B 16/07/2011 Folha 259/424 Baixo custo para os tratamentos ou reposição; O tratamento pode ser feito em caráter preventivo ou curativo; Não precisa desocupar armários para efetuar o controle; Não deixa cheiro no ambiente; Pode ser aplicado em qualquer tipo de edificação. Os pontos negativos desse sistema:   O sistema só pode ser instalado durante o período de construção ou de reforma do imóvel, pois a rede é instalada no solo, abaixo do contrapiso; Poucas empresas possuem essa tecnologia. O segundo método é o de ISCAGEM. Esse método utiliza isca atrativa para detectar a presença de cupins e atraí-los, e quando então a colônia identifica aquele ponto para sua alimentação, substitui-se a isca atrativa por uma isca de controle, onde os insetos levarão para o ninho o alimento envenenado, podendo assim eliminar a colônia. FIGURA – (PRAGAS Urbanas. Disponível em http://www.pragas.com.br. Acesso em: 08 abril 2004) Pontos positivos:  Não deixa cheiro de inseticidas no ambiente;  Para efetuar o tratamento não é preciso perfurar pisos e paredes;  Não é necessário desocupar armários para efetuar o controle;  Não precisa desocupar o ambiente. Pontos negativos:  Alguns tipos de edificação não permitem a aplicação desse método, como edificações germinadas ou calçadas em redor; Elaborado por: Analisado por: Professor : Marcelo Gandra Falcone Alessandra Aparecida Vieira Marcelo Gandra Falcone QUANDO IMPRESSO CONSIDERAR PIRATARIA - CÓPIA NÃO AUTORIZADA
  • 260.
    UNINOVE Engenharia de Avaliaçõese Perícias Manutenção Predial e Avaliação de Máquinas e Equipamentos         Rev. B 16/07/2011 Folha 260/424 O resultado do controle depende da praga localizar as iscas atrativas; Se o efeito das iscas de controle for detectado pela colônia o método não funciona; A praga poderá provocar danos a mobiliários e a edificação até se obter o controle; O tratamento precisa ter acompanhamento constante e permanente, gerando custos indefinidos; Não é eficiente para algumas das espécies de cupins subterrâneos; Não há garantia de resultado e nem de tempo para atingir o controle; Para realizar os serviços regulares de monitoramento é necessário adentrar a edificação; Poucas empresas possuem essa tecnologia. O MÉTODO TRADICIONAL ou barreiras químicas no solo. Para construir as barreiras químicas, é necessário efetuar o tratamento de solo, formando muros contínuos e homogêneos, sob a edificação e ao redor de todos os pontos de contato das estruturas, paredes etc. com o solo (terra). FIGURA – (PRAGAS Urbanas. Disponível em http://www.pragas.com.br. Acesso em: 08 abril 2004) A seta branca mostra onde são feitos os furos para o tratamento do solo para o controle de cupins subterrâneos, de maneira a formar uma barreira química contra a entrada desses insetos. Em cinza é mostrado o piso e em marrom, a parede da estrutura. Os pisos de mármore, granito e porcelanatos sofrem danos irreparáveis com as perfurações. Para a construção da barreira química, quando for piso coberto de cimento, cerâmico etc., é necessário perfurá-lo para a posterior injeção dos produtos por meio dos furos. Essas barreiras levarão à morte instantânea os indivíduos presentes, e permanecerão ativas por meio da ação residual dos produtos, impedindo futuros ataques às áreas tratadas. Os produtos permitidos hoje para essa função persistem por dois a quatro anos. Elaborado por: Analisado por: Professor : Marcelo Gandra Falcone Alessandra Aparecida Vieira Marcelo Gandra Falcone QUANDO IMPRESSO CONSIDERAR PIRATARIA - CÓPIA NÃO AUTORIZADA
  • 261.
    UNINOVE Rev. B Engenharia deAvaliações e Perícias Manutenção Predial e Avaliação de Máquinas e Equipamentos 16/07/2011 Folha 261/424 Os produtos ou ingredientes ativos que formam as barreiras químicas sofrem decomposição por umidade, agentes químicos, ação de fauna e flora etc., sendo necessário repetir os tratamentos periodicamente. FIGURA – (PRAGAS Urbanas. Disponível em http://www.pragas.com.br. Acesso em: 08 abril 2004) Nesse método, para repetir ou repor os produtos em tratamentos futuros é necessário perfurar pisos e paredes, tendo que se refazer todo o serviço. Por isso deve-se utilizar grandes quantidades de inseticidas e de longa ação residual para aumentar o período de controle, o que também aumenta o risco de contaminação do meio ambiente. Pontos positivos:  Pode ser aplicado em qualquer tipo de edificação;  Protege com eficiência a edificação contra essas pragas;  Pode ser efetuado em edificações já construídas. Pontos negativos:  O tratamento dura de dois a quatros anos e tem que ser refeito;  É necessário perfurar pisos, no caso de edificações já finalizadas, causando mais prejuízos;  É necessário desocupar o local para o tratamento;  Nos tratamentos futuros ou de reposição é necessário novamente perfurar o piso, provocando danos;  É preciso aplicar enormes quantidades de produtos, e com o maior poder residual;  O método oferece risco ambiental;  O tempo para o serviço é longo e com custo alto;  Oferece riscos de perfurar redes hidráulicas, elétricas, entre outros, para execução do serviço. Tratamentos curativos: São necessários quando a praga já invadiu a edificação. Esses tratamentos sempre são caros e traumáticos. Isso porque geralmente quando se percebe a infestação, os danos já são elevados, e assim os métodos de tratamentos serão tradicional ou o de iscagem, ou um mescla deles. Elaborado por: Analisado por: Professor : Marcelo Gandra Falcone Alessandra Aparecida Vieira Marcelo Gandra Falcone QUANDO IMPRESSO CONSIDERAR PIRATARIA - CÓPIA NÃO AUTORIZADA
  • 262.
    UNINOVE Rev. B Engenharia deAvaliações e Perícias Manutenção Predial e Avaliação de Máquinas e Equipamentos 16/07/2011 Folha 262/424 Na opção do método tradicional ou de barreiras químicas é preciso perfurar pisos, paredes, estruturas, colocando em risco as redes hidráulicas e elétricas, provocando danos em pisos e paredes, porcelanatos, granitos etc. Também é necessário desocupar armários, retirar as pessoas do local, mais o custo do tratamento que é alto, contribuindo para um verdadeiro caos. Se a opção for o de iscagem, até obter-se a solução pode demorar e a perda de mais mobiliários é inevitável, o custo é mais caro, pois o serviço tem que ser permanente. Cupins de madeira seca – características Todas as espécies de cupins adaptadas ao meio urbano se alimentam da celulose da madeira, ou de papéis, couro, tecidos etc. A diferença básica entre o primeiro grupo (subterrâneos), como já citamos, nidificam no solo, mas as espécies desse segundo grupo têm seus ninhos localizados na própria madeira. Outra diferença é que este segundo grupo deixa como rastros grânulos amontoados (fezes) próximos à madeira infestada, o que torna fácil detectá-lo. Os reprodutores das espécies de cupins de madeira seca após o vôo nupcial irão se alojar em rachaduras ou fendas na madeira e nela constituirão a colônia, por isso o ataque fica restrito a uma peça ou móvel, e também explica porque jogando fora o móvel ou madeira atacada se livra também do problema, o que não acontece com o primeiro grupo. Essas espécies são menos agressivas que a anterior; a população de insetos de uma colônia é bem menor e se o móvel fosse tratado preventivamente pelo fabricante, não teríamos o ataque. Medidas Preventivas: Existem ainda uma série de medidas que podem ser consideradas preventivas ao ataque de cupins de madeira seca. São elas.:    Uso de madeiras tratadas durante a construção do imóvel ou montagem dos móveis; Uso de madeiras naturalmente mais resistentes; Proteção da superfície exterior das madeiras com tintas, vernizes ou outras coberturas apropriadas, com o objetivo de tapar frestas e ranhuras onde os cupins possam se alojar. Coleópteros – características Coleópteros é a ordem dos insetos, com cerca de 900 espécies xilófagas descritas. Esses insetos são conhecidos por brocas ou caranchos. Esses insetos não são sociais, apesar de em uma infestação haver vários indivíduos. Elaborado por: Analisado por: Professor : Marcelo Gandra Falcone Alessandra Aparecida Vieira Marcelo Gandra Falcone QUANDO IMPRESSO CONSIDERAR PIRATARIA - CÓPIA NÃO AUTORIZADA
  • 263.
    UNINOVE Rev. B Engenharia deAvaliações e Perícias Manutenção Predial e Avaliação de Máquinas e Equipamentos 16/07/2011 Folha 263/424 As espécies variam de tamanho desde -1 mm até 200 mm de comprimento, tendo as mais comuns cerca de 5 mm. O ciclo de vida desses insetos passa por quatro estágios distintos: ovo, larva, pupa e adulto. O ataque inicia-se na ovoposição (de 30 até 400 ovos) na superfície cortical da madeira (período de incubação de uma a três semanas), que após a eclosão desses ovos, as larvas penetram pelos poros ou aberturas naturais da madeira, não deixando sinais de ataque, alimentando-se principalmente de alburnos já secos e em alguns casos, atacam também o cerne. Geralmente a infestação ou ovoposição acontece no período de fabricação ou serraria, e se manifestam alguns anos depois. As espécies xilófagas na sua maioria atacam a madeira no estágio larval chamado pelos marceneiros de “brocas”. Nessa fase é que passam o maior período de suas vidas, de um a quatro anos, mas há relatos de até dezesseis anos, dependendo da espécie e condições ambientais, onde se desenvolverão e se alimentação, degradando a madeira. Somente então quando essa larva, depois de passar pelo estágio de pupa, dentro da madeira, atinge a fase adulta. Então um pequeno besouro alado chamado de caruncho sai da madeira e é quando visualizamos pequenos orifícios e o pó fino como de farinha ou fubá. Quando saem da madeira para copularem estão na fase adulta e viverão pouco tempo, questão de meses, e na maioria das espécies não se alimentarão mais da madeira, tendo nesse estágio o objetivo único de reprodução. No controle preventivo, tanto dos cupins de madeira seca como dos coleópteros, o método indicado é o de saturação e impregnação das fibras das madeira, por meio de pulverizações, pincelamento, imersão com produtos veiculados em solventes específicos a fim de penetrar nas fibras da madeira. Esses tratamentos preventivos são simples e baratos, pena que os fabricantes ou madeireiros não se conscientizaram disso e assim evitariam muitos prejuízos. Nos métodos de controle curativos, como geralmente a madeira está impermeabilizada com tintas ou vernizes, os tratamentos já citados são poucos eficientes. Recomenda-se quando possível o método de expurgo. Esses tratamentos são mais caros e raramente compensa fazê-los não só pelo valor, pois precisam ser removidos para um local apropriado. Elaborado por: Analisado por: Professor : Marcelo Gandra Falcone Alessandra Aparecida Vieira Marcelo Gandra Falcone QUANDO IMPRESSO CONSIDERAR PIRATARIA - CÓPIA NÃO AUTORIZADA
  • 264.
    UNINOVE Rev. B Engenharia deAvaliações e Perícias Manutenção Predial e Avaliação de Máquinas e Equipamentos 16/07/2011 Folha 264/424 Como diferenciar infestação de cupins subterrâneos, cupins de madeira seca e os coleópteros: Cupins subterrâneos 1.Não deixam sinais de ataque e raramente constroem túneis de terra. 2.Os reprodutores e o ninho estão alojados no subsolo, só os operários vão buscar alimento. Cupins de madeira seca 1.Deixam como sinal de ataque grânulos amontoados, que são seus excrementos removidos da colônia. 2.Os reprodutores e todo o ninho estão alojados na madeira ou móvel que está sendo atacado. 5.São insetos sociais. 6.Conhecidos por bichinhos da luz, aleluias 2.Não existe ninho, os indivíduos são independentes, alimentando-se da madeira durante a fase larval. 3.Jogar fora o móvel elimina o problema. 4.Vivem na mesma madeira, mas isolados uns dos outros. 5.Não são insetos sociais. 6.Conhecidos por brocas ou carunchos. 7.Ataque de média intensidade Cupins de madeira seca 7.Ataque de baixa intensidade. Coleópteros 8.Uma colônia pode chegar a milhares de indivíduos. 9.A solução é tratar os móveis atacados ou eliminá-los. 10.Atacam madeiras brancas ou de baixa resistência química como o pinho,pínus,compensados de portas,armários embutidos,móveis etc. 8.Em uma peça de madeira chega a muitas centenas de indivíduos. 9.A solução é tratar os móveis atacados ou eliminá-los. 10.Atacam madeiras brancas ou de baixa resistência química,como pinho,pínus,compensados de portas,armários embutidos,móveis etc. 3.Jogar fora o móvel não adianta. Fundam novas colônias no solo ou na estrutura da edificação. 5.São insetos sociais. 6.Conhecidos por aleluias e cupins de concreto. 7.Ataque intenso e agressivo. Cupins subterrâneos 3.Jogar fora o móvel elimina o problema. 4.Fundam novas colônias na madeira e vivem nela. 8. Uma colônia pode chegar a milhões de indivíduos. 9.A solução é tratar toda a edificação e subsolo. 10.Podem atacar qualquer tipo de madeira (peroba,ipê,pinho etc),dando preferência a madeiras brancas, desde que sejam fixas à edificação, como batentes,rodapés,armári os embutidos etc. Coleópteros 1.Deixam como sinal de ataque pó fino de madeira, como fubá. Elaborado por: Analisado por: Professor : Marcelo Gandra Falcone Alessandra Aparecida Vieira Marcelo Gandra Falcone QUANDO IMPRESSO CONSIDERAR PIRATARIA - CÓPIA NÃO AUTORIZADA
  • 265.
    UNINOVE Rev. B Engenharia deAvaliações e Perícias Manutenção Predial e Avaliação de Máquinas e Equipamentos 16/07/2011 Folha 265/424 Fungos São vegetais rudimentares, desprovidos de clorofila, parasitos, microscópicos e nutrem-se de material orgânico em decomposição (saprófitos). Os fungos decompõem a madeira por enzimas que reagem a nível molecular, quebrando a estrutura da mesma, mas para sobreviverem precisam de oxigênio e água. Os sinais visíveis de ataque de fungos são quebra, ruptura, esfacelamento da madeira ou o que denominamos de orelha de pau, que nada mais são do que órgãos de frutificação que produzem grandes quantidades de minúsculas “sementes”, denominadas esporos. Levados pelo vento em condições favoráveis de umidade, temperatura e aeração, os esporos germinam, produzindo finíssimos filamentos denominados hifas, que penetram na madeira. Essas hifas formam o corpo vegetativo do fungo, ou o micélio. O apodrecimento da madeira ocorre devido à atuação de enzimas, ou seja, compostos químicos produzidos pelo fungo. 1. Podemos classificar os fungos em três grupos: a.) Fungos Superficiais: desenvolvem-se apenas na superfície da madeira, nutrindo-se de resíduos nela contidos. Não comprometem a resistência mecânica e a estética da madeira. Ex.: Bolores e Míldios. b.) Fungos Manchadores: apresentam hifas pigmentadas, responsáveis pela coloração. Atacam o tecido parenquimatoso (tecido de armazenamento), alimentando-se de substâncias armazenadas (amido, açúcares, proteínas). c.) Fungos Apodrecedores: podemos subdividi-los em:  Fungos de Podridão Mole: atacam a parede celular e a lignina, decompondo a madeira totalmente, formando uma pasta mole no local de ataque;  Fungos de Podridão Parda: atacam a parede celular, degradando a celulose e a hemicelulose, transformando-as em substâncias solúveis;  Fungos de podridão Branca: atacam a lignina deixando a celulose que é branca. 2. Condições para desenvolvimento dos fungos:      Presença de Oxigênio (O2); Temperatura ideal entre 25º a 30ºC e não se desenvolvem abaixo de 0º e acima de 50ºC; Umidade ideal é o Ponto de Saturação das Fibras, onde a madeira apresenta água e oxigênio em quantidades ideiais; PH ideal entre 4,5 e 6,0 , sendo limite abaixo de 2,0 e acima de 9,0; Presença de alimento (madeira). Elaborado por: Analisado por: Professor : Marcelo Gandra Falcone Alessandra Aparecida Vieira Marcelo Gandra Falcone QUANDO IMPRESSO CONSIDERAR PIRATARIA - CÓPIA NÃO AUTORIZADA
  • 266.
    UNINOVE Rev. B Engenharia deAvaliações e Perícias Manutenção Predial e Avaliação de Máquinas e Equipamentos 16/07/2011 Folha 266/424 3. Sintomas de ataque de fungos:      Mudanças de coloração da madeira; Amolecimento da madeira; Mudança na densidade, perda de peso; Mudança de odor, cheiro desagradável; Aparecimento de “orelha de pau”. 4. Recomendações para evitar o apodrecimento com detalhes de projeto:          Manter a madeira seca abaixo de 20% de umidade; Suprimir o oxigênio (deixar a madeira imersa em água ou abaixo do lençol freático); Batentes ou portais se estiverem 1 cm ou mais acima do piso acabado, mesmo de madeiras moles, não apodrecem e podem durar mais que os de peroba; Telhados com beirais longos protegem as janelas de madeira da água e do sol; Evitar pontos de condensação de água; Aplicar impermeabilizantes em toda a madeira, inclusive nos encaixes, nas extremidades de batentes, apoios das vigas e colunas etc.; Calçadas laterais inclinadas para evitar acúmulo de água junto aos alicerces; Deixar espaço de ventilação sob os assoalhos, exemplo: porão; Tratamento preventivo com produtos químicos apropriados. 5. Decomposição por agentes abióticos È a alteração indesejada provocada por agentes físicos, mecânicos e químicos.      Irradiação solar e raios ultravioleta degradam a madeira provocando fotodecomposição, alterações químicas nas cadeias de polissacarídeos da celulose; Desgastes mecânicos ou abrasão, vento, roeduras de animais; exemplo: escadas, assoalhos, dormentes etc.; Decomposição por agentes físicos, chuvas, fogo (até 100ºC vaporização da umidade da madeira, entre 93º e 370ºC volatilização dos extrativos e o ponto de ignição é 260ºC); Ação de produtos químicos altamente ácidos ou básicos e alguns solventes degradam e dissolvem a madeira (ph maior que 8 e menor que 2), também podemos ressaltar o óxido de ferro provocado pela ferrugem de pregos etc.; Aquecimento prolongado causa mudança na estrutura celular, formando madeira quebradiça. Elaborado por: Analisado por: Professor : Marcelo Gandra Falcone Alessandra Aparecida Vieira Marcelo Gandra Falcone QUANDO IMPRESSO CONSIDERAR PIRATARIA - CÓPIA NÃO AUTORIZADA
  • 267.
    UNINOVE Rev. B Engenharia deAvaliações e Perícias Manutenção Predial e Avaliação de Máquinas e Equipamentos 16/07/2011 Folha 267/424 A seguir serão relatados alguns aspectos de determinadas pragas: FORMIGAS URBANAS Em função de seus hábitos de vida, são definidas como insetos sociais, tendo em suas colônias indivíduos e reprodutores estéreis e são capazes de transportar até cinqüenta vezes o seu peso. As formigas possuem uma dieta alimentar bastante variada; seu aparelho bucal é adaptado para mastigar vegetais (alimentos, folhas, madeiras etc.), animais, minerais, açúcares e ainda ingerir líquido. Além disso, as formigas podem também espalhar doenças, contaminadas por vírus, fungos, bactérias, danificar aparelhos elétricos ou eletrônicos, roupas, tecidos, certos objetos de borracha ou remover a proteção de cabos telefônicos, fios elétricos etc. As formigas, além de extremamente organizadas, possuem algumas características importantes que facilitam sua disposição, principalmente nos ambientes urbanos. Podemos citar a poliginia, presença de várias rainhas, populações unicolônias, colônias divididas e abrigadas em vários locais, fragmentação da colônia etc. Qualquer forma de controle a ser adotada deve ter como objetivo as colônias como um todo e não somente as operárias, que realizam atividades externas ao ninho. Uma das características principais das formigas urbanas é a forte tendência em migrar, ou seja, frequentemente mudam a colônia de lugar, tanto quando perturbadas, como quando em alta densidade populacional. ROEDORES – RATOS Alguns danos causados pelos ratos:       Consumo direto de alimentos; Contaminação e danos nos alimentos; Danos estruturais; Transmissão de doenças; Fontes de reinfestação em áreas adjacentes; Custos associados com a operação de controle. Métodos de Prevenção: Alimento e abrigo são, também, os fatores essenciais para promover a infestação dessas pragas numa determinada área; Elaborado por: Analisado por: Professor : Marcelo Gandra Falcone Alessandra Aparecida Vieira Marcelo Gandra Falcone QUANDO IMPRESSO CONSIDERAR PIRATARIA - CÓPIA NÃO AUTORIZADA
  • 268.
    UNINOVE Rev. B Engenharia deAvaliações e Perícias Manutenção Predial e Avaliação de Máquinas e Equipamentos 16/07/2011 Folha 268/424 eliminando-se esses fatores podemos evitar a presença indesejável desses roedores. Algumas medidas devem ser empregadas na rotina diária, como por exemplo: remover diariamente o lixo, acondicionar corretamente os alimentos, não jogar lixo em terrenos ou córregos, manter os jardins em bom estado de conservação, remover os entulhos, vedar devidamente esgotos e canis efluentes desativados, não acumular materiais em locais como depósitos e garagens. Controle da praga: Conforme já citado, a presença de roedores está também associada à disponibilidade de alimento, água e abrigo. Acrescentando a esses fatores as características comportamentais e reprodutivas desses animais, encontramos uma situação em que o controle somente alcançará o efeito desejado com a adoção de medidas integradas. O controle integrado de roedores envolve basicamente as seguintes etapas: a.) Adoção de Medidas Sanitárias para o Controle: A eliminação de fontes de alimentos e higienização da área são essenciais para o sucesso no controle de roedores.      Manter a área externa limpa e sem entulhos, materiais empilhados (madeiras, canos, telhas), mato, grama devidamente aparada, poda de galhos de árvores que se projetem sobre a edificação; Eliminar ou proteger as fontes de água: fossos, valas, poças estagnadas, poços, caixas d’água e outros reservatórios; Armazenamento adequado e protegido de cereais e forragens, alimentos, rações etc.; Acondicionamento do lixo em recipientes à prova de redores, ou que impossibilite seu acesso; Equipamentos adequados nas instalações hidráulicas e rede de esgoto como ralos telados, válvulas de sentido único de passagem etc. b.) Controle Químico: Atualmente é o método mais utilizado para eliminação de infestações existentes. Consiste na utilização de substâncias tóxicas incorporadas a iscas que serão oferecidas em locais de trânsito ou de visitação desses animais, entretanto tais substâncias contidas nas iscas também são tóxicas para outros mamíferos como gatos, cães e o próprio homem. c.) Controle Mecânico: Consiste na utilização de sistemas de proteção física contra a entrada de roedores na área, e sistemas de captura para remoção e posterior eliminação desses roedores. Devemos eliminar aberturas ou frestas maiores que 0,5 cm, impedindo a passagem dos ratos; instalar mecanismos para impedir o refluxo de efluentes nos vasos sanitários; colocar dispositivos impedindo a escalada em fios, paredes, tubulações, encanamentos e até mesmo em palmeiras localizadas nos jardins. Elaborado por: Analisado por: Professor : Marcelo Gandra Falcone Alessandra Aparecida Vieira Marcelo Gandra Falcone QUANDO IMPRESSO CONSIDERAR PIRATARIA - CÓPIA NÃO AUTORIZADA
  • 269.
    UNINOVE Rev. B Engenharia deAvaliações e Perícias Manutenção Predial e Avaliação de Máquinas e Equipamentos 16/07/2011 Folha 269/424 Os dispositivos de captura podem ser distribuídos estrategicamente pela área, como ratoeiras, armadilhas adesivas e gaiolas. A utilização de barreira elétrica ou sonora tem como fatores limitantes o seu custo, manutenção, habilidades do animal em se adaptar e riscos de acidentes. d.) Controle físico: A utilização de aparelhos que emitem ultrassom, vibradores, segundo diversos autores deve ser mais bem estudada para uma conclusão definitiva sobre essa técnica. Todos os tipos de controle existentes possuem vantagens e desvantagens, que deverão ser analisadas por empresa especializada. POMBOS Os pombos são aves comuns em quase todas as cidades brasileiras e em todos os meses do ano, sendo que poucos sabem do perigo à saúde pública que esses animais significam. Suas fezes, além de transmitirem doenças, sujam e destroem o patrimônio, pois são ácidas e deterioram materiais. Seus ninhos entopem calhas e quando ocorrem próximo a aeroportos podem ocasionar acidentes à aviação. Medidas de Controle: a) Medidas de médio/longo prazo: São medidas de controle que irão interferir diretamente na redução populacional dos pombos.  Emprego de substâncias anticoncepcionais;  Uso de pombas de reprodução controlada. b) Medidas a curto prazo: Representam medidas de controle que irão afastar os pombos das proximidades afetadas, sem influir no nível populacional. São, em sua maioria, medidas de controle que funcionam como barreiras físicas que impedem o pouso das aves nas superfícies tratadas.  A supressão alimentar torna-se fator limitante prioritário de controle, com resultados diretos na redução do potencial reprodutivo e da densidade populacional dessas aves;  Inclinação de superfícies de pouso;  Emprego de acessórios desestabilizadores de pouso;  Vedação de espaços;  Emprego de elementos assustadores (visuais e auditivos);  Persuasão do pouso por substâncias repelentes;  Equipamentos que impedem o acesso como cercas eletrificadas, telas, epículas etc.;  Captura por armadilhas;  Limpeza dos locais infestados;  Desinfecção das áreas. Elaborado por: Analisado por: Professor : Marcelo Gandra Falcone Alessandra Aparecida Vieira Marcelo Gandra Falcone QUANDO IMPRESSO CONSIDERAR PIRATARIA - CÓPIA NÃO AUTORIZADA
  • 270.
    UNINOVE Rev. B Engenharia deAvaliações e Perícias Manutenção Predial e Avaliação de Máquinas e Equipamentos 16/07/2011 Folha 270/424 Informações úteis      Os cupins não se alimentam do concreto, podem produzir ligeiro desgaste apenas para obter passagens para os túneis, entre os diversos componentes da edificação; Dados de instituições comprovam a alta infestação de cupins subterrâneos; pesquisas indicam que 30% das edificações (edifícios e residências) em São Paulo apresentam a infestação ou já foram atacadas por cupins, e a infestação cresce de forma geométrica, sendo que toda e qualquer edificação não protegida será atingida um dia; As fezes de pombos devem ser umedecidas antes de serem retiradas, para evitar a inalação de esporos de fungos e outras formas causadoras de doenças; No Brasil todo existe cerca de 20 espécies de formigas distribuídas pelas cidades; Antes de contratar serviços de Controle de Pragas Urbanas, verifique se a empresa tem alvará de funcionamento expedido pelo Centro d Vigilância Sanitária e usa produtos devidamente registrados no Ministério da Saúde. Perguntas freqüentes 1. Quando um ataque de cupins é de responsabilidade da construtora ou de um fabricante de móveis? R: Geralmente, todo ataque causado por qualquer espécie de inseto nas madeiras entregues pela construtora é de sua responsabilidade, e no caso de móveis, quando atacado por cupins subterrâneos, o fabricante geralmente não é o responsável. 2. Quando uma infestação de cupins em área privativa é de responsabilidade do condomínio ou do condômino? R: No caso de ataque de cupins de madeira seca ou brocas, geralmente o responsável é o condômino ou morador, no caso de cupins subterrâneos geralmente a responsabilidade é do condomínio. 3. Como descobrir que em um determinado local há cupins? R: Descobre-se a infestação de cupins buscando-se principalmente as pistas deixadas por esses insetos nos locais atacados. R: Os cupins de madeira seca liberam os resíduos fecais secos e granulados que se acumulam próximo às peças afetadas. Após os cupins eliminarem parte dos resíduos fecais pelos orifícios na madeira, eles os vedam novamente com uma película normalmente de coloração marrom. O principal indício da infestação de cupins de solo é a presença de túneis em paredes, lajes, rodapés, molduras de portas etc. Nos armários embutidos Elaborado por: Analisado por: Professor : Marcelo Gandra Falcone Alessandra Aparecida Vieira Marcelo Gandra Falcone QUANDO IMPRESSO CONSIDERAR PIRATARIA - CÓPIA NÃO AUTORIZADA
  • 271.
    UNINOVE Rev. B Engenharia deAvaliações e Perícias Manutenção Predial e Avaliação de Máquinas e Equipamentos 16/07/2011 Folha 271/424 devem ser cuidadosamente inspecionadas as peças internas. É freqüente também a observação dos túneis ou resíduos nos dutos elétricos. Além disso, as revoadas no ambiente interno ou externo, no solo, em árvores, é indício seguro da infestação. 4. Por que os cupins aparecem no calor? R: Nos meses quentes, após o inverno, apenas ocorrem as revoadas, que são a liberação dos reprodutores alados (com asas) com a finalidade de procriação e fundação de novas colônias. Portanto, quem aparece são os alados provenientes de colônias já existentes e bem desenvolvidas, que podem permanecer ativas durante muitos anos. 5. Siriri é cupim? R: O siriri é a casta dos cupins responsável pela reprodução, onde os indivíduos em sua forma alada tentarão se instalar nos locais propícios para iniciar uma nova colônia. Se forem siriri de cupins de madeira seca tentarão se instalar diretamente no interior da madeira. Se forem siriris de cupins de solo, procurarão o solo. R: Grande parte dos siriris morre durante ou após a revoada, mas os casais bem-sucedidos irão acasala e fundar novas colônias. 6. Os pombos transmitem doenças? R: Sim, por mio das fezes que podem conter fungos e outros microrganismos causam doenças graves como a criptococose, psitacose e salmonelose. Figura: Sujeira de Pombos Elaborado por: Analisado por: Professor : Marcelo Gandra Falcone Alessandra Aparecida Vieira Marcelo Gandra Falcone QUANDO IMPRESSO CONSIDERAR PIRATARIA - CÓPIA NÃO AUTORIZADA
  • 272.
    UNINOVE Rev. B Engenharia deAvaliações e Perícias Manutenção Predial e Avaliação de Máquinas e Equipamentos 16/07/2011 Folha 272/424 9.14 Equipamentos de lazer Visando proporcionar entretenimento aos seus moradores, os equipamentos de lazer são encontrados com freqüência nos condomínios residenciais; e entre os tipos mais freqüentes, este trabalho irá abordar as piscinas e os playgrounds. Figura: Quadra Poliesportiva 9.14.1 Piscinas a) Descrição do Sistema As piscinas são o conjunto das instalações (tanque, solário, casa de máquinas e vestiários), destinadas às atividades aquáticas. Os tipos de piscinas mais encontrados são com estrutura em concreto ou alvenaria armada; e revestimento em cerâmica, fibra de vidro ou vinil. O esquema básico de funcionamento do sistema de recirculação e tratamento da água de uma piscina é: Figura: Piscina – Sistema de Filtragem Elaborado por: Analisado por: Professor : Marcelo Gandra Falcone Alessandra Aparecida Vieira Marcelo Gandra Falcone QUANDO IMPRESSO CONSIDERAR PIRATARIA - CÓPIA NÃO AUTORIZADA
  • 273.
    UNINOVE Rev. B Engenharia deAvaliações e Perícias Manutenção Predial e Avaliação de Máquinas e Equipamentos 16/07/2011 Folha 273/424 Finalidade do Sistema. A finalidade da piscina em um condomínio residencial é: • proporcionar a convivência, o entretenimento e a prática de esportes aos seus moradores, • valorizar os imóveis nos quais estão instalados. Principais Anomalias As anomalias mais freqüentes nas piscinas são: • tratamento inadequado da água, • desgaste do revestimento do tanque ou do solário, • falta de manutenção ou manejo incorreto dos equipamentos, • vazamentos no tanque de origem estrutural, nas instalações ou no sistema de impermeabilização. Recomendações Técnicas. As recomendações técnicas mais importantes são: • propiciar treinamento ao pessoal do condomínio responsável pela manutenção; • promover exames regulares da qualidade da água; • manutenção dos equipamentos executada por empresa idônea; • contratação de técnico capacitado para levantar as causas e definir os reparos das eventuais anomalias existentes no conjunto; • instituir campanha dos princípios básicos de segurança e de saúde no uso da piscina. Você sabia?    Você sabia que as crianças só devem ter acesso às piscinas acompanhadas por um responsável? Você sabia que protetores e bronzeadores dificultam e comprometem a filtragem da água da piscina? Você sabia que pessoas com cabelos longos devem usar toucas de natação ou prendê-los junto à nuca, quando utilizando uma piscina Figura: Piscina – Vista superior Elaborado por: Analisado por: Professor : Marcelo Gandra Falcone Alessandra Aparecida Vieira Marcelo Gandra Falcone QUANDO IMPRESSO CONSIDERAR PIRATARIA - CÓPIA NÃO AUTORIZADA
  • 274.
    UNINOVE Rev. B Engenharia deAvaliações e Perícias Manutenção Predial e Avaliação de Máquinas e Equipamentos 16/07/2011 Folha 274/424 9.14.2 Playgrounds Descrição do Sistema Playgrounds são os equipamentos para brincar, destinados às atividades de lazer infantil. Tradicionalmente os playgrounds eram executados em madeira aparelhada ou em ferro pintados; porém atualmente, os mais encontrados são em madeira bruta tratada ou em plástico. Os brinquedos dos playgrounds podem ser móveis (balanço, roda-roda, gangorra), estáticos (escorregador, casinha de boneca) ou integrados. Foram projetados para a instalação permanente ao ar livre, e sem sistema motriz. Figura: Playground Finalidade do Sistema A finalidade do playground em um condomínio residencial é: • promover o desenvolvimento físico e social das crianças residentes no empreendimento, • valorizar os imóveis nos quais estão instalados. Principais Anomalias As anomalias mais freqüentes nos playgrounds são: • falta de manutenção no equipamento ou no seu entorno; • desgaste de peças no equipamento pela sua utilização; • vandalismo ou mau uso dos equipamentos. Elaborado por: Analisado por: Professor : Marcelo Gandra Falcone Alessandra Aparecida Vieira Marcelo Gandra Falcone QUANDO IMPRESSO CONSIDERAR PIRATARIA - CÓPIA NÃO AUTORIZADA
  • 275.
    UNINOVE Rev. B Engenharia deAvaliações e Perícias Manutenção Predial e Avaliação de Máquinas e Equipamentos 16/07/2011 Folha 275/424 Recomendações Técnicas As recomendações técnicas mais importantes são: • inspeções visuais freqüentes, com a troca imediata das peças do equipamento quando desgastadas ou faltando; • a superfície junto ao equipamento deve ser do tipo absorvente a impactos; • contratação de pessoal especializado, para a execução de inspeções. Você sabia?     Você sabia que as crianças só devem ter acesso aos playgrounds acompanhadas por um responsável? Você sabia que os brinquedos devem possuir sinalização indicando a idade e altura apropriada das crianças que podem utilizá-lo? Você sabia que um playground sem manutenção pode esconder perigosas armadilhas às crianças? Você sabia que tão importante quanto o equipamento, é que o seu entorno também seja adequado ao uso pelas crianças? Figura: Equipamentos para Playground Elaborado por: Analisado por: Professor : Marcelo Gandra Falcone Alessandra Aparecida Vieira Marcelo Gandra Falcone QUANDO IMPRESSO CONSIDERAR PIRATARIA - CÓPIA NÃO AUTORIZADA
  • 276.
    UNINOVE Rev. B Engenharia deAvaliações e Perícias Manutenção Predial e Avaliação de Máquinas e Equipamentos 16/07/2011 Folha 276/424 9.15 Sistema de cobertura Descrição È um sistema composto por estrutura (metálica, madeira a concreto), telhas (barro, fibrocimento, plásticas ou metálicas), calhas, rufos, canaletas, lajes, coletores e terraços impermeabilizados. A cobertura pode ser ainda de vidro ou policarbonato, apoiada sobre estrutura metálica. Normalmente, esses dois tipos de cobertura têm um caráter estético e decorativo, mantendo, no entanto sua característica principal, que é a proteção contra intempéries. Podemos ainda encontrar coberturas retrateis, que já não são comuns de se encontrar e deve ter um tratamento todo especial. A estrutura de um telhado é composto por tesoura, terça, oitão, ripas e caibros. Figura: Sistema de Cobertura - Telhado Elaborado por: Analisado por: Professor : Marcelo Gandra Falcone Alessandra Aparecida Vieira Marcelo Gandra Falcone QUANDO IMPRESSO CONSIDERAR PIRATARIA - CÓPIA NÃO AUTORIZADA
  • 277.
    UNINOVE Rev. B Engenharia deAvaliações e Perícias Manutenção Predial e Avaliação de Máquinas e Equipamentos 16/07/2011 Folha 277/424 Finalidades • Proteção da parte superior das edificações contras intempéries. • Recebimento de águas de chuva e direcionamento para o sistema de captação de águas pluviais. • Composição arquitetônica da fachada da edificação. Problemas e anomalias • Escorrimento de telhas devido à ação dos ventos. • Afrouxamento de parafuso de fixação. • Corrosão dos parafusos de fixação. • Ressecamento das borrachas. • Quebra de telhas. • Infiltração por ressecamento do silicone das juntas. • Destacamento da argamassa de chumbamento das cumeeiras. • Extravasões devidos a transbordamento dos condutores. • Destacamento do chumbamento dos rufos. • Empenamento da estrutura de madeira. • Caída inadequada para os coletores de água pluvial. • Inclinação inadequada. • Fixação inadequada das telhas. • Má fixação da estrutura do telhado. • Utilização de materiais inadequados. • Dificuldade de acesso à cobertura para manutenção. • Estocar materiais de forma inadequadas nas coberturas. • Fixação de equipamentos de manutenção • Oxidação de rufos e calhas. • Infiltrações provenientes da troca ou instalação de equipamentos • Apodrecimento (estrutura de madeira) em função de infiltração de água. • Corrosão (estrutura metálica) em função de infiltração de água. • Entupimentos causados por folhas e galhos • Infestação por pragas urbanas (cupins) Recomendação para solução das anomalias • Melhoria no sistema de fixação das telhas.(amarrar as primeiras fiadas é uma alternativa principalmente em áreas sujeitas a ventos fortes) • Verificação periódica do aperto de parafusos de fixação. • Nas calhas e rufos a cada três anos, renove a pintura das peças de chapa galvanizada usando tintas asfaltica.As de alumínio devem ser protegidas com um fundo especifico, dentro da mesma periodicidade o cobre despensa tratamento. • Substituição das borrachas danificadas. • Substituição das telhas quebradas. • Substituição do silicone das juntas. Elaborado por: Analisado por: Professor : Marcelo Gandra Falcone Alessandra Aparecida Vieira Marcelo Gandra Falcone QUANDO IMPRESSO CONSIDERAR PIRATARIA - CÓPIA NÃO AUTORIZADA
  • 278.
    UNINOVE Rev. B Engenharia deAvaliações e Perícias Manutenção Predial e Avaliação de Máquinas e Equipamentos 16/07/2011 Folha 278/424 • Substituição de cumeeira e novo assentamento. • Limpeza dos condutores. • Retirada de toda a argamassa solta, e novo assentamento dos rufos com argamassa. • Substituição do elemento de madeira danificado • Tratamento com lixamento e anticorrosivo. • Correção da caída. • Adequar a estrutura do telhado à inclinação correta. • Fixar as telhas de forma adequada com parafusos galvanizados e arruelas de borracha. • Melhorar a fixação da estrutura do telhado. • Na execução da manutenção utilizar sempre materiais adequados, seguindo as normas de segurança. • Os componentes de madeira que ficam expostos à chuva e sol precisam receber aplicações de stain ou verniz O stain é um produto impregnante que protege de raio solares e fungos, deve ser renovado a cada dois ano se a edificação ficar no litoral a manutenção terá que ser feita todo o ano. • No caso da estrutura ser metálica recomenda-se fazer uma inspeção a cada cinco anos, para ver se há algum ponto de corrosão, principalmente nas áreas de solda, mais vulneráveis.Em caso afirmativo, deve-se lixar manualmente a superfície atingida, aplicar uma camada de primer epóxi e pintar com tinta polioretânica ou epóxi.Se não houver problemas, basta renovar a pintura original. • Programar e planejar a execução dos serviços de manutenção. • Não permitir qualquer tipo de armazenamento sobre a cobertura • Se houver a instalação de equipamentos, vedar todos os parafusos de forma adequada. • O aperto de telhas de fibrocimento deve ser feito de forma cuidadosa para se evitar a fissuração das telhas nas ondas de fixação. • Proibir o acesso de pessoas não habilitadas ao telhado. • Ao menos uma vez por ano, antes da época das chuvas, é preciso desobstruir calhas e condutores, não há outro jeito: essa limpeza tem que ser feita de forma manual, com o auxilio de vassoura e pá.Tampe a entrada do condutor e retire folhas e gravetos amontoados ao longo da calhas. • Trafego correto de pessoas da manutenção sobre o telhado (sempre andar sobre tábuas as quais nunca devem ser posicionadas no meio das telhas). • Nunca trafegar sobre telhas úmidas ou molhadas. Perguntas e respostas  Má conservação do telhado pode causar danos à edificação? R: Sim, infiltrações trarão danos a estrutura do telhado e ao imóvel no nível inferior.  É preciso inspecionar o telhado após uma chuva de granizo? Elaborado por: Analisado por: Professor : Marcelo Gandra Falcone Alessandra Aparecida Vieira Marcelo Gandra Falcone QUANDO IMPRESSO CONSIDERAR PIRATARIA - CÓPIA NÃO AUTORIZADA
  • 279.
    UNINOVE Rev. B Engenharia deAvaliações e Perícias Manutenção Predial e Avaliação de Máquinas e Equipamentos 16/07/2011 Folha 279/424 R: Sim, pois poderá ocorrer a quebra de telhas.  É comum o entupimento das coletoras de água? R: Sim, principalmente quando há árvores por perto, pássaros e pipas também são causadores. Informações úteis  Somente profissional habilitado deverá fazer manutenção em coberturas.  Nunca faça manutenção na cobertura em dias de chuva.  O zelador deverá acompanhar todo e qualquer trabalho que venha a ser executado na cobertura  A qualidade do telhado depende muito mais de fatores de manutenção e conservação do que das características dos materiais empregados.  Os pontos descritos acima são de grande importância para a manutenção da integridade do telhado e por conseqüência, para sua estanqueidade.  A cobertura se for bem elaborada , construída e com manutenções preventivas e corretivas periódicas poderá durar a vida toda, quer seja de madeira, quer seja de metal, ou de qualquer outro material apropriado  Sempre que for necessária para a manutenção, a substituição de algum elemento em uma cobertura de vidro deve-se obrigatoriamente manter a especificação técnica do material. original.  É recomendável que se tenha um contrato de manutenção para as coberturas retrateis ( seus elementos mecânicos e elétricos necessitam, (de tal manutenção). Nos beirais das coberturas, deverá haver uma proteção sob as telhas, para se evitar a entrada de pequenos animais( ratos, pássaros ).   Se for necessário a instalação de equipamentos na cobertura, eventuais fios e cabos que necessitam passar sob o telhado, deverão ser tubulados. Empresas que venham a instalar equipamentos na cobertura deverão garantir a condição original do telhado. Elaborado por: Analisado por: Professor : Marcelo Gandra Falcone Alessandra Aparecida Vieira Marcelo Gandra Falcone QUANDO IMPRESSO CONSIDERAR PIRATARIA - CÓPIA NÃO AUTORIZADA
  • 280.
    UNINOVE Rev. B Engenharia deAvaliações e Perícias Manutenção Predial e Avaliação de Máquinas e Equipamentos 16/07/2011 Folha 280/424 9.16. Acessibilidade e Setorização. A inspeção deverá ser restrita aos aspectos físicos e de comunicação. O item acessibilidade deve atender às disposições previstas no Decreto nº 5.296/2004 e à ABNT NBR 9050/2004. Destaca-se que todas as intervenções que promovam acessibilidade devem garantir a todos o direito de ir e vir, com AUTONOMIA, CONFORTO e SEGURANÇA, da edificação. As casa de espetáculo e Shows com cadeiras devem obedecer a setorização conforme Anexo 17, alínea 17.j.7 do Decreto 32.329/92. 9.16.1) Setorização (Plateia - Auditórios / Casa de Espetáculos):  As Edificações destinadas a locais de reunião, que abriguem salas de cinemas, teatros e auditórios dotados de assentos fixos dispostos em filas, deverão atender aos seguintes requisitos de acordo com Anexo 17 da Lei 11.228/92 e Decreto 32.329/92 (Item 17.J.7): a) máximo de 16 ( dezesseis ) assentos em fila, quando tiverem corredores em ambos os lados; b) máximo de 8 ( oito ) assentos em fila, quando tiverem corredor em um único lado; c) setorização através de corredores transversais que disporão de, no máximo 14 ( quatorze ) filas; d) vão livre entre o assento e o encosto do assento fronteiro de, no mínimo, 0,50 m ( cinqüenta centímetros ); 9.16.2) Acessibilidade   Todo local de reunião deverá ser adequado à utilização por parte de deficientes físicos. Adaptação à deficiente físico de acordo com a Lei 11345/93 e NBR 9050/2004.Os cinemas, teatros, auditórios e similares devem possuir, na área destinada ao público, espaços reservados para P.C.R., assentos para P.M.R. e assentos para P.O., atendendo às seguintes condições: a) estar localizados em uma rota acessível vinculada a uma rota de fuga; b) estar distribuídos pelo recinto, recomendando-se que seja nos diferentes setores e com as mesmas condições de serviços; c) estar localizados junto de assento para acompanhante, sendo no mínimo um assento. É recomendável dois assentos de acompanhante; d) garantir conforto, segurança, boa visibilidade e acústica; e) estar instalados em local de piso plano horizontal; f) ser identificados por sinalização no local e na bilheteria, conforme 5.4.1; Elaborado por: Analisado por: Professor : Marcelo Gandra Falcone Alessandra Aparecida Vieira Marcelo Gandra Falcone QUANDO IMPRESSO CONSIDERAR PIRATARIA - CÓPIA NÃO AUTORIZADA
  • 281.
    UNINOVE Rev. B Engenharia deAvaliações e Perícias Manutenção Predial e Avaliação de Máquinas e Equipamentos 16/07/2011 Folha 281/424 g) estar preferencialmente instalados ao lado de cadeiras removíveis e articuladas para permitir ampliação da área de uso por acompanhantes ou outros usuários (P.C.R. ou P.M.R.) NOTA Em edifícios existentes, os espaços para P.C.R. e os assentos para P.M.R. podem ser agrupados, quando for impraticável a sua distribuição por todo o recinto. Sempre que possível os espaços devem ser projetados de forma a permitir a acomodação de P.P.D com no mínimo um acompanhante.  Palco e bastidores: Uma rota acessível deve interligar os espaços para P.C.R. ao palco e aos bastidores. Quando houver desnível entre o palco e a platéia, este pode ser vencido através de rampa com as seguintes características: a) largura de no mínimo 0,90 m; b) inclinação máxima de 1:6 (16,66%) para vencer uma altura máxima de 0,60 m; c) inclinação máxima de 1:10 (10%) para vencer alturas superiores a 0,60 m; d) ter guia de balizamento, não sendo necessária a instalação de guardacorpo e corrimão. Obs 1: Esta rampa pode ser substituída por um equipamento eletromecânico Sempre que possível, rampa ou equipamento eletromecânico de acesso ao palco devem se situar em local de acesso imediato, porém discreto e fora do campo visual da platéia. Obs 2: O desnível entre o palco e a platéia deve ser indicado com sinalização tátil de alerta no piso,  Camarins: Pelo menos um camarim para cada sexo deve ser acessível. Quando somente existir um camarim de uso unissex, este deve ser acessível.  Pelo DECRETO 45.122 – 12/08/2004: Art 2. – Deverão atender às normas de adequação à acessibilidade das pessoas com deficiência ou com mobilidade reduzida, as edificações, novas ou existentes, destinadas aos seguintes usos: ICinemas, teatros, salas de concerto, casas de espetáculos e estabelecimentos bancários, com qualquer capacidade de lotação; IILocais de reunião, com capacidade para mais de 100 (cem) pessoas, destinados a abrigar eventos geradores de público, tais como: a) Auditórios; b) Templos religiosos; c) Salões de festas ou danças; d) Ginásios ou estádios; Elaborado por: Analisado por: Professor : Marcelo Gandra Falcone Alessandra Aparecida Vieira Marcelo Gandra Falcone QUANDO IMPRESSO CONSIDERAR PIRATARIA - CÓPIA NÃO AUTORIZADA
  • 282.
    UNINOVE Engenharia de Avaliaçõese Perícias Manutenção Predial e Avaliação de Máquinas e Equipamentos e) f) g) h) IIIa) b) c) d)  Rev. B 16/07/2011 Folha 282/424 Recintos para exposições ou leilões; Museus; Restaurantes, lanchonetes e congêneres; Clubes esportivos e recreativos. Qualquer outro uso com capacidade de lotação para mais de 600 ( seiscentas ) pessoas, tais como: Estabelecimentos destinados à prestação de serviços de Assistência à Saúde, educação e hospedagem; Centros de compras – Shopping Centers; Galerias comerciais; Supermercados. Em sanitários acessíveis isolados é necessário: a) Dimensões das barras de apoio: Diâmetro: 3,0 a 4,5 cm b) Disposição de acessórios: de 0,80 a 1,20 m c) Altura da barra de apoio: 0,75 m d) Altura do vaso: 0,46 m e) Obrigatório a instalação de dispositivo de sinalização de emergência ao lado da bacia e no boxe do chuveiro, a uma altura de 0,40 m do piso acabado, para acionamento em caso de queda.  Estacionamento ESTACIONAMENTO Privativo até 100 vagas Privativo mais de 100 vagas Coletivo até 10 vagas Coletivo mais de 10 vagas VAGAS DEFICIENTES COE 0 1% 0 3% VAGAS DEF. Decreto Fed. 2% 2% 2% 2% Espaços para pessoas em cadeira de rodas e assentos para PMR/PO. Capacidade total de assentos espaços para P.C.R. assento para P.M.R.: Capacidade total Espaço para P.C.R. Assento para Assento P.O. de assentos: P.M.R. Até 25 1 1 1 26 a 50 2 1 1 51 a 100 3 1 1 101 a 200 4 1 1 201 a 500 2% do total 1% 1% 501 a 1.000 10 espaços mais 1% 1% 1% que exceder 500 Acima de 1.000 15 espaços mais 10 assentos mais 10 assentos mais 0,1% do que 0,1% do que 0,1% do que exceder 1.000 exceder 1.000 excedem 1.000  Elaborado por: Analisado por: Professor : Marcelo Gandra Falcone Alessandra Aparecida Vieira Marcelo Gandra Falcone QUANDO IMPRESSO CONSIDERAR PIRATARIA - CÓPIA NÃO AUTORIZADA
  • 283.
    UNINOVE Rev. B Engenharia deAvaliações e Perícias Manutenção Predial e Avaliação de Máquinas e Equipamentos 16/07/2011 Folha 283/424 9.17 Sistema de Condições Sanitárias Toda edificação deverá dispor de instalações sanitárias conforme disposto no presente Capítulo, na razão de sua população e em função da atividade desenvolvida. QUANTIFICAÇÃO Os índices para a determinação do número de pessoas serão os mesmos adotados na tabela de Lotação das Edificações no Capítulo 12, devendo ser descontadas da área bruta da edificação, para este fim, as áreas destinadas à própria instalação sanitária e garagens de uso exclusivo. 1-As edificações destinadas a uso residencial unifamiliar e multifamiliar deverão dispor de instalações sanitárias nas seguintes quantidades mínimas: a) casas e apartamentos: 1 (uma) bacia, 1 (um lavatório e 1 (um) chuveiro; b) áreas de uso comum de edificações multifamiliares: 1(uma) bacia, 1 (um) lavatório, e 1 (um) chuveiro, separados por sexo. 2-As demais edificações deverão dispor de instalações sanitárias, nas seguintes quantidades mínimas: a) hospitais ou clínicas com internação, hotéis e similares: 1 (uma) bacia, 1 (um) lavatório e 1 (um) chuveiro para cada 2 (duas) unidades de internação ou hospedagem, e 1 (uma) bacia e 1 (um) lavatório para cada 20 (vinte) pessoas nas demais áreas, descontadas deste cálculo as áreas destinadas a internação ou hospedagem; b) locais de reunião: 1 (uma) bacia e 1 (um) lavatório para cada 50 (cinqüenta) pessoas; Ver LEI 11345-93 Ver LEI 11441-93 c) outras destinações: 1 (uma) bacia e 1 (um) lavatório para cada 20 (vinte) pessoas. Ver LEI 11495-94 Ver RESOLUCAO CEUSO 094-99 2.1-Quando o número de pessoas for superior a 20 (vinte) haverá, necessariamente, instalações sanitárias separadas por sexo. 2.2-A distribuição das instalações sanitárias por sexos será decorrente da atividade desenvolvida e do tipo de população predominante. 2.3-Nos sanitários masculinos, 50% (cinqüenta por cento) das bacias poderão ser substituídas por mictórios. Elaborado por: Analisado por: Professor : Marcelo Gandra Falcone Alessandra Aparecida Vieira Marcelo Gandra Falcone QUANDO IMPRESSO CONSIDERAR PIRATARIA - CÓPIA NÃO AUTORIZADA
  • 284.
    UNINOVE Rev. B Engenharia deAvaliações e Perícias Manutenção Predial e Avaliação de Máquinas e Equipamentos 16/07/2011 Folha 284/424 2.4-Toda edificação não residencial deverá dispor, no mínimo, de uma instalação sanitária por sexo, distante no máximo 50m (cinqüenta metros) de percurso real de qualquer ponto, podendo se situar em andar contíguo ao considerado. 2.5-Será obrigatória a previsão de, no mínimo, uma bacia e um lavatório por sexo, junto a todo compartimento destinado a consumição de alimentos, situados no mesmo pavimento deste. 2.6-Serão providos de antecâmara ou anteparo as instalações sanitárias que derem acesso direto a compartimentos destinados a trabalho, refeitório ou consumição de alimentos. 2.7-Quando, em razão da atividade desenvolvida, for prevista a instalação de chuveiros, estes serão calculados na proporção de um para cada 20 (vinte) usuários. 2.8-Serão obrigatórias instalações sanitárias para pessoas portadoras de deficiências físicas, na relação de 3% (três por cento) da proporção estabelecida no item 14.1.2, nos seguintes usos: a) locais de reunião com mais de 100 (cem) pessoas; b) qualquer outro uso com mais de 600 (seiscentas) pessoas.  Locais de Reunião: 1 ( uma ) bacia e 1 ( um ) lavatório para cada 50 ( cinqüenta ) pessoas. a) Quando o número de pessoas for superior a 20 ( vinte ) haverá necessariamente, instalações sanitárias separadas por sexo.  Toda edificação não residenciais deverá dispor, no mínimo de uma instalação sanitária por sexo, distante no máximo 50 m ( cinqüenta ) metros de percurso real de qualquer ponto, podendo se situar em andar contíguo ao considerado. Figura: Banheiro adequado Elaborado por: Analisado por: Professor : Marcelo Gandra Falcone Alessandra Aparecida Vieira Marcelo Gandra Falcone QUANDO IMPRESSO CONSIDERAR PIRATARIA - CÓPIA NÃO AUTORIZADA
  • 285.
    UNINOVE Rev. B Engenharia deAvaliações e Perícias Manutenção Predial e Avaliação de Máquinas e Equipamentos 16/07/2011 Folha 285/424 9.18 Cozinhas Profissionais Este capitulo foi escrito baseado na norma NBR 14518 - 2000 - Ventilação para Cozinhas Profissionais, em especial seu item 9 e na IT Instrucao Tecnica - 38 Segurança contra Incêndio em Cozinha Profissional. Sua introdução na Apostila deve-se ao numero elevado de princípios de incêndios em cozinhas industriais, principalmente nos sistemas de coifas 9.8.2. Principais anomalias e falhas As anomalias e falhas mais comuns nas instalações de gás, independente do tipo de gás fornecido, são:  Falta de sistema de Proteção Contra Incêndios em Cozinhas Profissionais cuja área de cocção seja maior que 50 m2. Bom exemplo de sistema automático: Figura: Bateria de CO2 para extinção de incêndio. Elaborado por: Analisado por: Professor : Marcelo Gandra Falcone Alessandra Aparecida Vieira Marcelo Gandra Falcone QUANDO IMPRESSO CONSIDERAR PIRATARIA - CÓPIA NÃO AUTORIZADA
  • 286.
    UNINOVE Rev. B Engenharia deAvaliações e Perícias Manutenção Predial e Avaliação de Máquinas e Equipamentos 16/07/2011 Folha 286/424 Mau exemplo de Cozinha: Figura: Área de cocção com gambiarras elétricas        As saídas devem ser mantidas livres e desimpedidas, de acesso facilitado, de forma que os ocupantes não tenham dificuldade em abandonar a edificação em caso de sinistro. A largura das saídas, corredores, escadas ou das rampas será calculada tomando como base 0,01 m por pessoa com largura mínima de 1,20 m. Para cálculo do número de pessoas, a área ocupada deve ser 1 pessoa para cada 0,40 m2 . Devem ser previstos acessos e saídas para deficientes físicos, segundo a NBR 9050/94. Todos os funcionários, independentemente da área construída, devem possuir treinamento teórico e prático de técnicas de prevenção e combate a incêndios, especialmente voltado para os riscos locais. As tomadas elétricas devem ser instaladas fora do fluxo gasoso proveniente dos equipamentos de cocção. A rede de dutos de exaustão em nenhum trecho pode passar em compartimentos com medidores ou botijões de gás combustível, em instalações fixas. A rede de dutos de exaustão deve ser aparente, sendo vedado o uso de quaisquer tipos de forro, rebaixados ou de acabamento que possam incrementar e/ou manter a progressão do incêndio. Elaborado por: Analisado por: Professor : Marcelo Gandra Falcone Alessandra Aparecida Vieira Marcelo Gandra Falcone QUANDO IMPRESSO CONSIDERAR PIRATARIA - CÓPIA NÃO AUTORIZADA
  • 287.
    UNINOVE Rev. B Engenharia deAvaliações e Perícias Manutenção Predial e Avaliação de Máquinas e Equipamentos 16/07/2011 Folha 287/424 9.19 SISTEMAS AUXILIARES Sistema de iluminação Utilizando-se o Sistema de Automação Predial, é possível monitorar e operar o Sistema de Iluminação do edifício, seja nas áreas comuns ou nas áreas privativas. Nas áreas privativas ou comuns de um edifício, o Sistema de Automação Predial permite estabelecer o horário de funcionamento, ou seja, poderíamos configurar o sistema de modo que a iluminação ligue automaticamente as áreas privativas às 07h00 e desligue automaticamente às 20h00. Normalmente, o inquilino de um Edifício com Sistema de Automação Predial é quem decide o horário de funcionamento. No entanto, caso o usuário (funcionário) necessite permanecer nos escritórios além do horário mencionado, deverá entrar em contato com a Central de Automação Predial do Edifício e solicitar que a iluminação seja ativada novamente, informando o pavimento e a localização exata. Muitos edifícios de escritório possuem circuitos de iluminação divididos em diversos quadrantes de cada pavimento de escritório. Dessa forma é necessário permanecer com todo o andar iluminado, a menos que muitas pessoas estejam trabalhando no mesmo andar, em localizações distintas (dispersos pelo andar). Portanto, a participação de cada usuário também é muito importante no processo global de economia de recursos: energia elétrica, água etc. Para poder exemplificar, confeccionamos novamente um edifício hipotético, em que cada conjunto de escritório possui oito circuitos de iluminação, dispostos em oito quadrantes (conjuntos de luminárias agrupadas). Caso os quadrantes de iluminação sejam desfeitos, futuramente poderá ocorrer a seguinte situação: o(a) usuário(a) solicita iluminação em uma única sala e será necessário ligar todos os circuitos de iluminação do pavimento para atender a essa solicitação. Circuito fechado de televisão (C.F.T.V.) Os modernos Sistemas de Circuito Fechado de Televisão (C.F.T.V.) são constituídos por câmeras coloridas, estrategicamente localizadas em todas as áreas comuns, com gravação 24 horas por dia em sistema de videocassete especial ou sistema de gravação digital. Por exemplo: as câmaras instaladas nos lobbies dos andares podem ou não serem acionadas para gravação por intermédio dos controles de presença de infravermelho ativo, instalados nas próprias câmaras ou nos próprios lobbies dos elevadores. Elaborado por: Analisado por: Professor : Marcelo Gandra Falcone Alessandra Aparecida Vieira Marcelo Gandra Falcone QUANDO IMPRESSO CONSIDERAR PIRATARIA - CÓPIA NÃO AUTORIZADA
  • 288.
    UNINOVE Rev. B Engenharia deAvaliações e Perícias Manutenção Predial e Avaliação de Máquinas e Equipamentos 16/07/2011 Folha 288/424 Com este Sistema é possível monitorar todas as áreas comuns externas e internas do edifício, subsolos, escadas rolantes, casas de máquinas, ar condicionado, elevadores, áreas de serviço, heliponto, recepção, trânsito externo ao edifício, segurança externa etc. Sistemas de incêndio: detecção, combate e sonorização Os edifícios modernos possuem sistema de detecção e combate de incêndio monitorados e operados pelo Sistema de Supervisão Predial. Assim, todos os pavimentos do prédio possuem dispositivos de detecção de fumaça, podendo ser endereçáveis; ou seja, o Sistema de Alarme de Incêndio, por intermédio da integração com o Sistema de Automação Predial, pode demonstrar graficamente na tela do sistema a localização exata do sensor que entrou em alarme. Os demais tipos de sensores também possuem essa tecnologia. Detectores de gás e detectores termovelocimétricos são normalmente instalados em copas ou cozinhas; botoeiras de emergência, sirenes (sonoro e visual), assim como toda a rede de sprinklers pressurizada também pode ser monitorada pelo Sistema de Automação Predial. Dessa forma, desempenhar qualquer tipo de intervenção de emergência para combater princípios de incêndio é fácil, pois os alarmes podem ser prematuramente identificados. Em complemento, muitos edifícios possuem Sistema Sonoro nos pavimentos de escritório, de forma que em caso de incêndio é possível transmitir mensagens previamente gravadas de modo que o operador do sistema não tenha que se ocupar dessa função. Existem outros recursos que também estão disponíveis na tecnologia atual: o Sistema de Incêndio pode ser monitorado remotamente; nesse caso, o Corpo de Bombeiros também poderia ser acionado de forma automática. Outra função que o Sistema de Incêndio oferece é a interface com os Elevadores. Em caso de incêndio, o Sistema de Incêndio instrui os elevadores a interromperem o tráfego total e simultaneamente; após, elevador por elevador desce até o pavimento térreo e abre as portas, liberando os passageiros em segurança. Essa função é pré-determinada pelo Corpo de Bombeiros e chama-se “serviço de incêndio” ou “serviço de emergência” para os elevadores. Porém, quem origina o sinal é o Sistema de Incêndio do Edifício, cuja interface com o Sistema de Automação Predial encaminha o referido sinal para o Sistema de Gerenciamento dos Elevadores. Esse é, sem dúvida, um caso clássico da integração que deve existir entre a automação dos subsistemas de um edifício, a qual reitera a necessidade de existir um protocolo único de comunicação (LonWorks) entre os diversos fabricantes. Elaborado por: Analisado por: Professor : Marcelo Gandra Falcone Alessandra Aparecida Vieira Marcelo Gandra Falcone QUANDO IMPRESSO CONSIDERAR PIRATARIA - CÓPIA NÃO AUTORIZADA
  • 289.
    UNINOVE Rev. B Engenharia deAvaliações e Perícias Manutenção Predial e Avaliação de Máquinas e Equipamentos 16/07/2011 Folha 289/424 Controle de acesso e segurança O Sistema de Automação Predial também permite efetuar o Controla de Acesso ao Edifício por meio de diversos tipos de dispositivos, como por exemplo: portões, cancelas e catracas eletrônicas. Esses dispositivos podem ser operados localmente ou pelo Sistema de Supervisão Predial. Quanto às catracas eletrônicas, permitem o acesso de usuários somente com a utilização de crachás de aproximação. Esses mesmos crachás podem operar as cancelas de acesso ao estacionamento. Este é, sem dúvida, um bom exemplo para mostrar o que é um sistema de automação com protocolo fechado (sistema proprietário) ou sistema de automação com protocolo aberto (protocolo LonWorks). Imaginem a seguinte situação: no referido edifício hipotético foi instalado um sistema de automação predial, inadvertidamente, com protocolo fechado. Em outras palavras, qualquer complemento de leitora, controladora, crachá de acesso, software ou peça de reposição, obrigatoriamente deverá ser adquirido no mesmo fabricante do Sistema de Automação Predial. Imaginem a seguinte situação, muito comum: ao ser contratada a empresa para operar o estacionamento do edifício, descobriu-se que o sistema de controle de acesso do estacionamento é diferente do sistema de controle de acesso do edifício. Ainda assim, pensou-se na possibilidade de integrar os dois sistemas: porém, o custo de integração dos dois sistemas é muito alto, ou ainda, para expandir o sistema de acesso do edifício para o estacionamento, o custo é muito maior do que o sistema proposto pela empresa de estacionamento. Dessa forma, adotase que o sistema de controle de acesso do estacionamento será diferente do edifício até mesmo porque o Síndico do edifício não quer assumir essa responsabilidade sobre o estacionamento. O resultado prático é que todos os usuários do edifício terão que utilizar dois crachás para acessar o edifício: um para o estacionamento e outro para as catracas. A partir desse ponto, diversos problemas operacionais ocorrem, como por exemplo, a necessidade de atualizar duas bases de dados de cadastro de usuários simultaneamente etc. Bastaria que o projetista tivesse especificado o sistema de automação predial e controle de acesso com protocolo aberto. Esse exemplo também poderia ser utilizado para fazer uma analogia aos demais subsistemas prediais e a necessidade de integrá-los. Já imaginaram as dificuldades para integrar a Automação Predial com o Sistema de Gerenciamento de Elevadores? Ou integrar o Sistema de Automação Predial de Gerenciamento de Energia Elétrica? O exemplo do estacionamento é bastante simples; no entanto, em um dos mais modernos edifícios comerciais de São Paulo, os usuários utilizam dois crachás. Qual terá sido o motivo? Custo? Problemas de integração dos sistemas? Certamente, caso tivessem tido o cuidado quanto à questão do protocolo aberto, o edifício teria somente um crachá. Resumindo: protocolo fechado torna cativo o Cliente ao Fabricante. Por sua vez, o Fabricante costuma cobrar mais caro pelo protocolo fechado. Elaborado por: Analisado por: Professor : Marcelo Gandra Falcone Alessandra Aparecida Vieira Marcelo Gandra Falcone QUANDO IMPRESSO CONSIDERAR PIRATARIA - CÓPIA NÃO AUTORIZADA
  • 290.
    UNINOVE Rev. B Engenharia deAvaliações e Perícias Manutenção Predial e Avaliação de Máquinas e Equipamentos 16/07/2011 Folha 290/424 Outros sistemas também são muito utilizados no mercado de segurança patrimonial. Utiliza-se para proteção perimetral da propriedade, infravermelho ativo e outras tecnologias. Recomenda-se que seja envolvido um Consultor, sem vínculo com fornecimento de mão-de-obra ou fabricante de dispositivos de proteção, para determinar com exatidão quais equipamentos devem ser utilizados. Outro edifício em São Paulo empregou o sistema de proteção perimetral com infravermelho ativo, o qual dispara com cada gato ou pedestre que senta no muro com 0,5 m de altura. Pode acontecer que você tenha mais alarmes do que efetivamente necessita. Sistemas gerenciadores de Energia elétrica O Sistema de Automação Predial também possui a capacidade de integrar diversos dispositivos de gerenciamento, controle e monitoração do consumo de energia elétrica. As variáveis normalmente monitoradas são: 1. Demanda de Energia Elétrica; 2. Consumo de Energia Elétrica; 3. Fator de Potência etc. O controle de demanda de energia elétrica nada mais é do que o controle do desligamento das cargas majoritárias do edifício objetivando impedir a ultrapassagem da demanda contratada. O Sistema de Automação Predial lida com os valores máximos determinados no Contrato firmado com a Concessionária, incluindo ou não a margem de segurança normalmente oferecida de 10% e procede ao desligamento das cargas de modo que a demanda registrada nunca ultrapasse a demanda contratada. Figura: Central de Alarme Elaborado por: Analisado por: Professor : Marcelo Gandra Falcone Alessandra Aparecida Vieira Marcelo Gandra Falcone QUANDO IMPRESSO CONSIDERAR PIRATARIA - CÓPIA NÃO AUTORIZADA
  • 291.
    UNINOVE Rev. B Engenharia deAvaliações e Perícias Manutenção Predial e Avaliação de Máquinas e Equipamentos 16/07/2011 Folha 291/424 10 - Acessibilidade “Acessibilidade é a Possibilidade e condição de alcance, percepção e entendimento para a utilização com segurança e autonomia, de edificações, espaços, mobiliários, vias públicas, equipamentos urbanos e transporte coletivo.” (ABNT NBR 9050:2004) Com base no Decreto Federal 3298, de 1999 é considerada pessoa portadora de deficiência física, toda aquela que possui alteração completa ou parcial de um ou mais segmentos do seu corpo, que possa comprometer sua função física. De acordo com a Secretaria Municipal da Pessoa com Deficiência e Mobilidade Reduzida, pessoas com Deficiência ou Mobilidade Reduzida podem ter limitações:  DEAMBULAM: Gestantes, obesos, crianças, idosos, usuários de prótese e órtese, pessoas carregando pacotes, etc.  USUÁRIOS DE CADEIRA DE RODAS: Paraplégicos, tetraplégicos, hemiplégicos, amputados, idosos, etc.  SENSORIAIS: Limitação da capacidade visual, auditiva e fala.  COGNIÇÃO: Percepção, memória, raciocínio, linguagem, etc A disfunção pode se apresentar sob a forma de paraplegia, paraparesia, monoplegia, monoparesia, tetraplegia, tetraparesia, triplegia, triparesia, hemiplegia, hemiparesia, amputação ou ausência de membro, paralisia cerebral, membros com deformidade congênita ou adquirida, As doenças terminadas em plegia significam que a pessoa perdeu o movimento do membro; em paresia que dizer que ela perdeu a sensibilidade no membro atingido; e em hemiplegia é quando um lado do corpo fica debilitado, podendo ser o direito ou esquerdo. O último Censo do IBGE aponta que 14,5% da população brasileira apresenta algum tipo de deficiência. No Município de São Paulo, com uma população de cerca de 10 milhões de habitantes, foram encontrados 10,32 % de pessoas com deficiência, sendo 1,26% com deficiência mental, 2,37% com deficiência auditiva, 3,27% com deficiência motora, 0,72% com deficiência física e 6,59% com deficiência visual. Com base em dados do Sinduscon os valores de investimento para adaptações de edificação a Norma NBR 9050 são:  1% do valor total do investimento, no Projeto ou  25% do valor total do investimento, no Retrofit, ou seja, na adequação de obra já existente (em média). Elaborado por: Analisado por: Professor : Marcelo Gandra Falcone Alessandra Aparecida Vieira Marcelo Gandra Falcone QUANDO IMPRESSO CONSIDERAR PIRATARIA - CÓPIA NÃO AUTORIZADA
  • 292.
    UNINOVE Rev. B Engenharia deAvaliações e Perícias Manutenção Predial e Avaliação de Máquinas e Equipamentos 16/07/2011 Folha 292/424 A seguir veremos o quadro elaborado pela Secretaria Municipal da Pessoa com Deficiência e Mobilidade Reduzida em 2004 a partir do Censo de 2000: População com deficiência por Subprefeitura (COGest - set/2004) Subprefeitura Pop. pesquisada % Def. Física % Def. Motora % Def. Mental % Def. Auditiva % Def. Visual Aricanduva Butantã Cidade Ademar 314.946 589.257 367.664 0,73 0,74 0,84 3,34 3,41 3,19 1,36 1,33 1,37 2,32 2,57 2,85 6,54 7,36 6,07 Campo Limpo Cidade Tiradentes Casa Verde 526.171 190.675 313.324 0,76 0,59 0,65 3,24 3,17 3,12 1,21 1,06 1,27 2,42 2,35 2,36 7,29 7,60 7,30 Capela do Socorro 689.474 Ermelino Matarazzo 198.037 0,69 0,67 2,76 2,87 1,21 1,27 2,48 2,84 6,70 6,18 Freguesia do Ó / Brasilândia 392.247 0,67 2,92 1,31 2,22 5,48 Guaianases Ipiranga Itaim Paulista 205.629 275.051 131.442 0,68 0,64 0,49 3,83 3,56 3,55 1,50 1,23 1,16 2,12 2,03 2,37 8,34 6,86 6,24 Itaquera Jabaquara Lapa 696.159 201.511 385.047 0,69 0,75 0,81 2,97 3,53 3,89 1,15 1,28 1,49 2,25 2,49 2,71 7,19 7,16 6,52 M'Boi Mirim Mooca 229.565 348.696 0,78 0,75 3,28 3,98 1,04 1,41 2,70 2,24 5,64 7,77 Parelheiros 23.227 1,26 3,81 1,30 2,26 5,03 Penha Perus Pinheiros 453.196 101.425 444.219 0,72 0,48 0,78 3,78 3,71 3,16 1,29 1,27 1,21 2,28 2,24 2,74 6,78 6,58 6,33 Pirituba 295.435 0,75 3,16 1,29 2,32 6,21 Santo Amaro São Mateus 297.350 314.441 0,77 0,65 3,72 2,88 1,34 1,23 2,47 2,06 6,62 5,33 São Miguel Santana Sé 641.893 310.130 550.701 0,74 0,82 0,65 2,80 3,71 3,35 1,19 1,34 1,17 2,74 2,04 2,62 6,05 7,72 5,60 Tremembé / Jaçanã Vila Prudente / Sapopemba Vila Guilherme / Vila Maria Vila Mariana 287.744 0,59 2,57 1,15 2,43 4,82 200.320 0,81 3,29 1,31 1,93 6,76 217.625 0,58 3,49 1,21 2,61 8,10 242.939 0,74 3,46 1,21 2,43 5,29 Total 10.435.540 0,71 3,64 1,26 2,37 6,59 Tabela 2 : Dstribuição da População com necessidades especiais. Fonte: Secretaria Municipal da Pessoa com Deficiência e Mobilidade Reduzida URL:HTTP://PORTAL.PREFEITURA.SP.GOV.BR/SECRETARIAS/DEFICIENCIA_MOBILIDADE_REDUZIDA/ACESSIBILIDADE /0004 Elaborado por: Analisado por: Professor : Marcelo Gandra Falcone Alessandra Aparecida Vieira Marcelo Gandra Falcone QUANDO IMPRESSO CONSIDERAR PIRATARIA - CÓPIA NÃO AUTORIZADA
  • 293.
    UNINOVE Rev. B Engenharia deAvaliações e Perícias Manutenção Predial e Avaliação de Máquinas e Equipamentos 16/07/2011 Folha 293/424 10.1 Aplicação da Acessibilidade na Cidade de São Paulo De acordo com a Secretaria Municipal da Pessoa com Deficiência e Mobilidade Reduzida e o CPMD - Conselho Municipal da Pessoa com Deficiência ( antigo CPA), todos os espaços caracterizados pela concentração de pessoas devem estar adaptados ao uso por cidadãos com deficiência ou mobilidade reduzida. O nível da adaptação depende da capacidade de lotação e do tipo de uso desses locais. A seguir as exigências feitas a cada estabelecimento definidas nas Leis e Normas conforme o APENDICE I deste Trabalho, ou seja, observe com atenção, pois as exigências são asseguradas por lei. Fonte: Apostila - ACESSIBILIDADE Mobilidade Acessível na Cidade de São Paulo 10.1.1. Nos locais Classificados conforme tabela acima retirada do Decreto Municipal de São Paulo 45.122/04 e nos próximos itens de 7.2 até 7.4 os itens de acessibilidade obrigatórios são: Fonte: Apostila - ACESSIBILIDADE Mobilidade Acessível na Cidade de São Paulo, pg 66 Elaborado por: Analisado por: Professor : Marcelo Gandra Falcone Alessandra Aparecida Vieira Marcelo Gandra Falcone QUANDO IMPRESSO CONSIDERAR PIRATARIA - CÓPIA NÃO AUTORIZADA
  • 294.
    UNINOVE Rev. B Engenharia deAvaliações e Perícias Manutenção Predial e Avaliação de Máquinas e Equipamentos 16/07/2011 Folha 294/424 10.2.2 Nível da Adaptação para Locais acima de 100 pessoas : Fonte: Apostila - ACESSIBILIDADE Mobilidade Acessível na Cidade de São Paulo, pg 67 10.1.3 Nível da Adaptação para Locais acima de 600 pessoas : Fonte: Apostila - ACESSIBILIDADE Mobilidade Acessível na Cidade de São Paulo, pg 68 Elaborado por: Analisado por: Professor : Marcelo Gandra Falcone Alessandra Aparecida Vieira Marcelo Gandra Falcone QUANDO IMPRESSO CONSIDERAR PIRATARIA - CÓPIA NÃO AUTORIZADA
  • 295.
    UNINOVE Rev. B Engenharia deAvaliações e Perícias Manutenção Predial e Avaliação de Máquinas e Equipamentos 16/07/2011 Folha 295/424 10.1.4 Nível da Adaptação para Ocupação Residencial: Fonte: Apostila - ACESSIBILIDADE Mobilidade Acessível na Cidade de São Paulo, pg 69 10. 2. Desenho Universal 10.2.1 Conceito O conceito de Desenho Universal (do inglês universal design) foi desenvolvido em Washington (E.U.A.) em 1963. Ele considera não só o projeto, mas principalmente a diversidade humana, de forma a respeitar as diferenças existentes entre as pessoas a garantir a acessibilidade a todos os componentes do ambiente. Desta forma, os espaços e produtos poderão ser utilizados pelo mais amplo espectro de usuários, incluindo crianças, idosos, pessoas muito altas ou baixas, pessoas destras e canhotas, pessoas com deficiência física ou mental, ou mobilidade reduzida, como gestantes e obesos, entre outros. Fonte: Artigo do “The Center forUniversal Design” Elaborado por: Analisado por: Professor : Marcelo Gandra Falcone Alessandra Aparecida Vieira Marcelo Gandra Falcone QUANDO IMPRESSO CONSIDERAR PIRATARIA - CÓPIA NÃO AUTORIZADA
  • 296.
    UNINOVE Rev. B Engenharia deAvaliações e Perícias Manutenção Predial e Avaliação de Máquinas e Equipamentos 16/07/2011 Folha 296/424 Baseia-se no respeito à diversidade humana e na inclusão de todas as pessoas nas mais diversas atividades, independente de suas características físicas, idades ou habilidades. A meta é atingir um desenho de qualidade no qual, além de requisitos estéticos, é fundamental o fácil entendimento sobre o uso (legibilidade), a segurança e o conforto para todos. Embora muitas vezes um projeto não consegue ser a solução ideal a todas as pessoas, com a mesma equivalência, mas há muitas decisões a serem tomadas em fase de projeto que podem acomodar os espaços e produtos utilizáveis de forma segura e autônoma por todos. A ergonomia, especialmente em fase de concepção, deve ajudar a transformar positivamente as condições ambientais, que refletem na qualidade de vida de todas as pessoas. Portanto, os conhecimentos específicos do desenho universal são fundamentais, partindo do princípio que este “novo” conceito é, antes de tudo, uma forma de pensar. 10.2.2 Considerações de projeto e conceitos Primeiramente, é necessário desmitificar o “homem padrão” como referência de projeto para considerar as necessidades distintas em função da mobilidade, habilidade e funções sensoriais de cada um, além de seu nível de compreensão, aprendizado e orientação. Conforme dados da ONU, entre 10% e 15% de pessoas possuem algum tipo de deficiência, que varia conforme seu grau de desenvolvimento. O Censo 2000 revelou que 14,5% da população brasileira era portadora de, pelo menos, uma das deficiências investigadas pela pesquisa. A maior proporção se encontrava no Nordeste (16,8%) e a menor, no Sudeste (13,1%). Estima-se que em 2025 o Brasil será o sexto país do mundo a ter a população com mais idosos, em números absolutos, com aproximadamente 32 milhões. Deve-se considerar também que no nosso país grande parte da população que adquire imóvel próprio para moradia, o faz através de financiamentos longos, que os mantém na mesma edificação por muitos anos. Para a ergonomia, as deficiências são classificadas conforme o ambiente e os equipamentos relacionados às necessidades especiais dos usuários. Sob este enfoque, uma pessoa pode ter uma deficiência e não ser classificado como deficiente. Por exemplo: um indivíduo que possua uma falange, e não encontra dificuldade para realizar atividades no seu trabalho. A restrição indica o grau de dificuldade que cada indivíduo possui para realizar alguma atividade, conforme a Organização Mundial da Saúde (International Elaborado por: Analisado por: Professor : Marcelo Gandra Falcone Alessandra Aparecida Vieira Marcelo Gandra Falcone QUANDO IMPRESSO CONSIDERAR PIRATARIA - CÓPIA NÃO AUTORIZADA
  • 297.
    UNINOVE Rev. B Engenharia deAvaliações e Perícias Manutenção Predial e Avaliação de Máquinas e Equipamentos 16/07/2011 Folha 297/424 Classification of Functioning, Disability and Health), de 2001. Qualquer indivíduo pode ter restrições no desempenho de uma atividade em função de deficiência, idade avançada, condições sócio-culturais ou desenho do ambiente. Elas são divididas em:    Restrição sensorial: refere-se às dificuldades na percepção das informações do meio ambiente devido a limitações nos cetins sensoriais (auditivo, visual, paladar/olfato, háptico e orientação); Restrições cognitivas: refere-se às dificuldades no tratamento das informações recebidas (atividades mentais) ou na sua comunicação através de produção lingüística devido a limitações no sistema cognitivo; Restrições físico-motoras: refere-se ao impedimento, ou às dificuldades encontradas em relação ao desenvolvimento de atividades que dependam de força física, coordenação motora, precisão ou mobilidade; Restrição físico-motora Fonte: Artigo do “The Center forUniversal Design”  Restrições múltiplas: decorrem da associação de mais de um tipo de restrição de natureza diversa. Outros conceitos importantes são de autonomia, independência e capacidade funcional:  Autonomia á a capacidade de decisão, de comando, de realizar a própria vontade;  Independência é a capacidade de realizar algo com os seus próprios meios. A autonomia é mais útil que a independência como um objetivo global, pois pode ser completa, mesmo que o indivíduo seja dependente em algum nível. Elaborado por: Analisado por: Professor : Marcelo Gandra Falcone Alessandra Aparecida Vieira Marcelo Gandra Falcone QUANDO IMPRESSO CONSIDERAR PIRATARIA - CÓPIA NÃO AUTORIZADA
  • 298.
    UNINOVE Rev. B Engenharia deAvaliações e Perícias Manutenção Predial e Avaliação de Máquinas e Equipamentos 16/07/2011 Folha 298/424 Fonte: Artigo do “The Center forUniversal Design” Capacidade funcional é resultante entre saúde física, saúde mental, independência na vida diária, integração social, suporte familiar e independência econômica. O bem estar é o resultado do equilíbrio entre as várias dimensões da capacidade funcional, sem necessariamente significar ausência de problemas em todas as dimensões.  10.2.3 Princípios do Desenho Universal 10.2.3.1. Uso Eqüitativo - O desenho é utilizável por pessoas com habilidades diversas. Acesso de supermercado fonte: NC State University Transporte Público Fonte: Artigo do “The Center forUniversal Design” Elaborado por: Analisado por: Professor : Marcelo Gandra Falcone Alessandra Aparecida Vieira Marcelo Gandra Falcone QUANDO IMPRESSO CONSIDERAR PIRATARIA - CÓPIA NÃO AUTORIZADA
  • 299.
    UNINOVE Rev. B Engenharia deAvaliações e Perícias Manutenção Predial e Avaliação de Máquinas e Equipamentos 16/07/2011 Folha 299/424 a) Prover os mesmos significados de uso para todos os usuários: idêntico quando possível, equivalente quando não possível. Exemplo: Portas com sensores se abrem sem exigir força física ou alcance das mãos de usuários de alturas variadas (as mãos podem estar ocupadas). b) Impedir segregação ou estigmatização dos usuários. Exemplo: Rampa adjacente a uma escada impede a segregação de pessoas com restrições de mobilidade. c) Prover privacidade, segurança e proteção de forma igual a todos os usuários. Exemplo: Barras de apoio no sanitário permitem que a pessoa faça a transferência da cadeira de rodas para o vaso sanitário de forma segura. d) Tornar o desenho atraente para todos os usuários. Exemplo: Cores que estimulam os sentidos fazem com que o ambiente se torne mais agradável. 10.2.3.2. Uso flexível - O desenho acomoda uma ampla faixa de preferências e habilidades. fonte: NC State University a) Prover escolhas na forma de utilização. Exemplo: Computador com teclado e mouse possibilita escolha na entrada dos dados. b) Acomodar acesso e utilização para destros e canhotos. Exemplo: Guarda-corpos e guias em ambos os lados de um caminho provêem proteção e estabilidade em ambas as direções para canhotos e destros. c) Facilitar a precisão e acuidade do usuário. Exemplo: A marcação arquitetônica da entrada de um prédio facilita ao visitante seu reconhecimento já do estacionamento. d) Prover adaptabilidade para a velocidade (compasso, ritmo) do usuário. Exemplo: Escadas rolantes devem dispor de um patamar no início e término da escada, para que haja um tempo de adaptação à mudança de velocidade no deslocamento do usuário. Elaborado por: Analisado por: Professor : Marcelo Gandra Falcone Alessandra Aparecida Vieira Marcelo Gandra Falcone QUANDO IMPRESSO CONSIDERAR PIRATARIA - CÓPIA NÃO AUTORIZADA
  • 300.
    UNINOVE Rev. B Engenharia deAvaliações e Perícias Manutenção Predial e Avaliação de Máquinas e Equipamentos 16/07/2011 Folha 300/424 Fonte: Artigo do “The Center forUniversal Design” 10.2.3.3. Uso simples e intuitivo - O desenho é fácil de ser compreensão e independe da experiência, conhecimento, habilidades de linguagem, ou nível de concentração do usuário. fonte: NC State University Fonte: Artigo do “The Center forUniversal Design” a) Eliminar a complexidade desnecessária. Exemplo: Utilizar simbologia internacional e de fácil identificação para garantir informação, como a localização de sanitários. Elaborado por: Analisado por: Professor : Marcelo Gandra Falcone Alessandra Aparecida Vieira Marcelo Gandra Falcone QUANDO IMPRESSO CONSIDERAR PIRATARIA - CÓPIA NÃO AUTORIZADA
  • 301.
    UNINOVE Rev. B Engenharia deAvaliações e Perícias Manutenção Predial e Avaliação de Máquinas e Equipamentos 16/07/2011 Folha 301/424 b) Ser coerente com as expectativas e intenções do usuário. Exemplo: Localizar os mapas e placas informativas próximas às circulações verticais, para o usuário Ter acesso à informação ao chegar no pavimento. c) Acomodar uma faixa larga de habilidades de linguagem e capacidades em ler e escrever. Exemplo: Informações adaptadas aos deficientes visuais, como mapas táteis, orientam a todos. d) Organizar as informações de forma compatível com sua importância. Exemplo: Hierarquizar as informações, através da utilização de placas maiores e menores, priorizando a informação essencial. e) Providenciar respostas efetivas e sem demora durante e após o término de uma tarefa. Exemplo: O elevador deve emitir sinal sonoro e luminoso ao abrir e fechar, permitindo seu uso com segurança as pessoas com restrições sensoriais. 10.2.3.4. Informação de fácil percepção - O desenho comunica a informação necessária para o usuário, independente de suas habilidades ou das condições do ambiente. fonte: NC State University a) Usar diferentes maneiras (pictórico, verbal, táctil) para apresentação redundante de uma informação essencial. Exemplo: Mapas em alto relevo permitem que as pessoas com restrições visuais identifiquem o ambiente em que se encontram. b) Maximizar a legibilidade da informação essencial. Exemplo: Toda informação deve chamar a atenção do usuário, através do contraste entre fundo e figura e com o entorno. c) Diferenciar elementos de forma a poderem ser descritos (isto é, tornar mais fácil dar informações ou direções). Exemplo: Grandes edifícios devem criar referenciais, como a presença de água, que além de estimular os sentidos facilita a orientação das pessoas com restrições sensoriais e cognitivas. d) Prever compatibilidade com uma variedade de técnicas ou procedimentos usados por pessoas com limitações sensoriais. Exemplo: Através da utilização do piso guia, a pessoa com restrição visual direciona-se ao longo de um percurso. Elaborado por: Analisado por: Professor : Marcelo Gandra Falcone Alessandra Aparecida Vieira Marcelo Gandra Falcone QUANDO IMPRESSO CONSIDERAR PIRATARIA - CÓPIA NÃO AUTORIZADA
  • 302.
    UNINOVE Rev. B Engenharia deAvaliações e Perícias Manutenção Predial e Avaliação de Máquinas e Equipamentos 16/07/2011 Folha 302/424 10.2.3.5. Tolerância ao Erro - O desenho minimiza riscos e conseqüências adversas de ações acidentais ou não intencionais. fonte: NC State University a) Organizar os elementos para minimizar riscos e erros: os elementos mais usados mais acessíveis; elementos de riscos ou perigosos eliminados, isolados ou protegidos. Exemplo: Elevadores com acesso ao público devem estar em locais de destaque; elevadores de serviço devem estar mais reservados. b) Providenciar avisos de riscos e de erro. Exemplo: Garantir que o tráfego de ciclistas seja seguro, dispondo de sinaleiras específicas em ciclovias que cruzam vias de trânsito intenso de veículos. c) Providenciar características de segurança na falha humana. Exemplo: Elevadores com sensores impedem seu fechamento durante a passagem de uma pessoa. d) Desencorajar ações inconscientes em tarefas que exijam vigilância. Exemplo: Sinaleiras sonoras e luminosas nos passeios providenciam avisos aos pedestres sobre a constante entrada e saída de veículos das garagens. 5.3.6. Baixo Esforço Físico - O desenho pode ser usado eficientemente, confortavelmente e com o mínimo de fadiga. fonte: NC State University Elaborado por: Analisado por: Professor : Marcelo Gandra Falcone Alessandra Aparecida Vieira Marcelo Gandra Falcone QUANDO IMPRESSO CONSIDERAR PIRATARIA - CÓPIA NÃO AUTORIZADA
  • 303.
    UNINOVE Rev. B Engenharia deAvaliações e Perícias Manutenção Predial e Avaliação de Máquinas e Equipamentos 16/07/2011 Folha 303/424 a) Permitir ao usuário manter uma posição corporal neutra. Exemplo: Disponibilizar balcões em duas alturas permitindo a aproximação de pessoas em cadeiras de rodas e crianças. b) Usar forças moderadas na operação. Exemplo: Torneiras acionadas por pressão não requerem grande esforço físico. c) Minimizar ações repetitivas. Exemplo: A maçaneta de porta do tipo alavanca evita o movimento repetitivo de girar a mão. d) Minimizar a sustentação de um esforço físico. Exemplo: Rampas rolantes permitem o deslocamento do usuário sem esforço. 10.2.3.7. Dimensão e espaço para aproximação e uso – Prover dimensão e espaço apropriados para o acesso, o alcance, a manipulação e o uso independente do tamanho do corpo, da postura ou mobilidade do usuário. fonte: NC State University a) Colocar os elementos importantes no campo visual de qualquer usuário, sentado ou em pé. Exemplo: Uma abertura de vidro lateral na porta assegura a visibilidade para pessoas de qualquer estatura. b) Fazer com que o alcance de todos os componentes seja confortável para qualquer usuário, sentado ou em pé. Exemplo: Barras de apoio dispostas horizontal e diagonalmente facilitam o uso do sanitário por pessoas de habilidades variadas. c) Acomodar variações da dimensão da mão ou da empunhadura. Exemplo: Portas com maçanetas em alça acomodam empunhaduras variadas. d) Prover espaço adequado para o uso de dispositivos assistivos ou assistência pessoal. Exemplo: Dispositivos de segurança utilizados em metrôs, livrarias, etc, devem comportar a passagem de uma cadeira de rodas. Os princípios do desenho universal não são prescritivos, mas sim baseados em características de desempenho dos ambientes e produtos, permitindo liberdade total de criação. Cada princípio suporta os demais e todos têm a mesma importância, portanto devem ser aplicados de maneira integrada. Elaborado por: Analisado por: Professor : Marcelo Gandra Falcone Alessandra Aparecida Vieira Marcelo Gandra Falcone QUANDO IMPRESSO CONSIDERAR PIRATARIA - CÓPIA NÃO AUTORIZADA
  • 304.
    UNINOVE Rev. B Engenharia deAvaliações e Perícias Manutenção Predial e Avaliação de Máquinas e Equipamentos 16/07/2011 Folha 304/424 10.3 . Locais de Reunião – Item 8.2 da NBR 9050/04 O objetivo deste capítulo 7 é fazer um estudo de caso, com a aplicação da NBR 9050/04 em locais de reunião, por estes possuírem diversas características específicas que englobam a aplicação de vários itens que influem diretamente na concepção dos espaços. Os cinemas, teatros, auditórios e similares devem possuir, na área destinada ao público, espaços reservados para P.C.R., assentos para P.M.R. e assentos para P.O., atendendo às seguintes condições:  estar localizados em uma rota acessível vinculada a uma rota de fuga;  estar distribuídos pelo recinto, recomendando-se que seja nos diferentes setores e com as mesmas condições de serviços;  estar localizados junto de assento para acompanhante, sendo no mínimo um assento e recomendável dois assentos de acompanhante;  garantir conforto, segurança, boa visibilidade e acústica;  estar instalados em local de piso plano horizontal;  ser identificados por sinalização no local e na bilheteria;  estar preferencialmente instalados ao lado de cadeiras removíveis e articuladas para permitir ampliação da área de uso por acompanhantes ou outros usuários (P.C.R. ou P.M.R.) No processo de desenvolvimento de um projeto de local de reunião, como cinemas e teatros, por exemplo, devemos observar alguns aspectos que norteiam sua elaboração, dentre eles:     ACESSOS E CIRCULAÇÃO; SANITÁRIOS; MOBILIÁRIO; COMUNICAÇÃO E SINALIZAÇÃO (Não será abordada neste trabalho); Elaborado por: Analisado por: Professor : Marcelo Gandra Falcone Alessandra Aparecida Vieira Marcelo Gandra Falcone QUANDO IMPRESSO CONSIDERAR PIRATARIA - CÓPIA NÃO AUTORIZADA
  • 305.
    UNINOVE Rev. B Engenharia deAvaliações e Perícias Manutenção Predial e Avaliação de Máquinas e Equipamentos 16/07/2011 Folha 305/424 10.3.1 - ACESSOS E CIRCULAÇÃO: Devem ser projetados levando em conta as características do público alvo, além de contemplar o acesso de P.C.R, P.M.R e P.O. Os pisos devem ter superfície regular, e possuir pisos podátil de alerta (utilizado para sinalizar situações que envolvem risco de segurança) e piso tátil direcional (utilizado quando da ausência ou descontinuidade de linha-guia identificável, como guia de caminhamento em ambientes internos ou externos, ou quando houver caminhos preferenciais de circulação), além de se evitar os desníveis (eventuais desníveis no piso de até 5 mm não demandam tratamento especial. Desníveis superiores a 5 mm até 15 mm devem ser tratados em forma de rampa, com inclinação máxima de 1:2 ). Perspectiva da rampa de acesso Elaborado por: Analisado por: Professor : Marcelo Gandra Falcone Alessandra Aparecida Vieira Marcelo Gandra Falcone QUANDO IMPRESSO CONSIDERAR PIRATARIA - CÓPIA NÃO AUTORIZADA
  • 306.
    UNINOVE Rev. B Engenharia deAvaliações e Perícias Manutenção Predial e Avaliação de Máquinas e Equipamentos 16/07/2011 Folha 306/424 Planta da rampa de acesso Os corredores devem obedecer as larguras conforme a tabela abaixo: As escadas de acesso devem possuir corrimãos contínuos de ambos os lados, com sinalização em braile no final do corrimão, além de sinalização de piso podátil sempre que começar ou terminar um desnível, ale de que nas escadas de segurança dever ser projetado um espaço específico para cadeiras de rodas, conforme as figuras abaixo: Elaborado por: Analisado por: Professor : Marcelo Gandra Falcone Alessandra Aparecida Vieira Marcelo Gandra Falcone QUANDO IMPRESSO CONSIDERAR PIRATARIA - CÓPIA NÃO AUTORIZADA
  • 307.
    UNINOVE Rev. B Engenharia deAvaliações e Perícias Manutenção Predial e Avaliação de Máquinas e Equipamentos 16/07/2011 Folha 307/424 Sempre na concepção do projeto, deve ser prevista a sinalização informativa, indicativa e direcional da localização das entradas acessíveis. Nas áreas de resgate deve ser previsto o espaço para um M.R. a cada 500 pessoas ou fração. As bilheterias devem ser adaptadas, de forma a um cadeirante poder acessá-la de forma autônoma. No caso de não ser possível o acesso em nível, ou a construção de rampas, um meio de prover o acesso do portador de deficiência ao local, é a utilização de plataforma de transporte fixado ao corrimão das escadas, ou plataformas do tipo elevador. Elaborado por: Analisado por: Professor : Marcelo Gandra Falcone Alessandra Aparecida Vieira Marcelo Gandra Falcone QUANDO IMPRESSO CONSIDERAR PIRATARIA - CÓPIA NÃO AUTORIZADA
  • 308.
    UNINOVE Rev. B Engenharia deAvaliações e Perícias Manutenção Predial e Avaliação de Máquinas e Equipamentos 16/07/2011 Folha 308/424 Nos ambientes internos a edificação, o deficiente deve ter acesso a todos os locais que tenham público, e que, no caso de edificações com mais de um pavimento e que se utilizem de elevadores, estes devem ser adaptados, como segue: Elaborado por: Analisado por: Professor : Marcelo Gandra Falcone Alessandra Aparecida Vieira Marcelo Gandra Falcone QUANDO IMPRESSO CONSIDERAR PIRATARIA - CÓPIA NÃO AUTORIZADA
  • 309.
    UNINOVE Rev. B Engenharia deAvaliações e Perícias Manutenção Predial e Avaliação de Máquinas e Equipamentos 16/07/2011 Folha 309/424 10.3.2 - SANITÁRIOS: Os sanitários e vestiários acessíveis devem localizar-se em rotas acessíveis, próximos à circulação principal, preferencialmente próximo ou integrados às demais instalações sanitárias, e ser devidamente sinalizados. Os sanitários e vestiários de uso comum ou uso público devem ter no mínimo 5% do total de cada peça instalada acessível, respeitada no mínimo uma de cada. Quando houver divisão por sexo, as peças devem ser consideradas separadamente para efeito de cálculo. Recomenda-se a instalação de uma bacia infantil para uso de crianças e de pessoas com baixa estatura. Planta de sanitário adaptado Foto de sanitário adaptado Elaborado por: Analisado por: Professor : Marcelo Gandra Falcone Alessandra Aparecida Vieira Marcelo Gandra Falcone QUANDO IMPRESSO CONSIDERAR PIRATARIA - CÓPIA NÃO AUTORIZADA
  • 310.
    UNINOVE Rev. B Engenharia deAvaliações e Perícias Manutenção Predial e Avaliação de Máquinas e Equipamentos 16/07/2011 Folha 310/424 Vista de sanitário adaptado Vista lateral de sanitário adaptado Elaborado por: Analisado por: Professor : Marcelo Gandra Falcone Alessandra Aparecida Vieira Marcelo Gandra Falcone QUANDO IMPRESSO CONSIDERAR PIRATARIA - CÓPIA NÃO AUTORIZADA
  • 311.
    UNINOVE Rev. B Engenharia deAvaliações e Perícias Manutenção Predial e Avaliação de Máquinas e Equipamentos 16/07/2011 Folha 311/424 10.2.3 - MOBILIÁRIO Quantidade dos espaços para P.C.R. e assentos para P.M.R. e P.O. A quantidade dos espaços deve estar de acordo com a tabela abaixo: Capacidade total de assentos Espaços para P.C.R Assento para P.M.R Assento P.O. Alteração Até 25 De 26 a 50 De 51 a 100 De 101 a 200 De 201 a 500 De 501 a 1 000 1 2 3 4 2% do total 10 espaços, mais 1% do que exceder 500. 15 espaços, mais 0,1% do que exceder 1000. 1 1 1 1 1% 1% 1 1 1 1 1% 1% 10 assentos mais 0,1% do que exceder 1000. 10 assentos mais 0,1% do que exceder 1000. Acima de 1 000 10.3.3.1 - Localização dos espaços para P.C.R. e assentos para P.M.R. e P.O. Em cinemas, a distância mínima para a localização dos espaços para P.C.R. e os assentos para P.M.R. deve ser calculada traçando-se um ângulo visual de no máximo 30º a partir do limite superior da tela até a linha do horizonte visual com altura de 1,15 m do piso. Elaborado por: Analisado por: Professor : Marcelo Gandra Falcone Alessandra Aparecida Vieira Marcelo Gandra Falcone QUANDO IMPRESSO CONSIDERAR PIRATARIA - CÓPIA NÃO AUTORIZADA
  • 312.
    UNINOVE Rev. B Engenharia deAvaliações e Perícias Manutenção Predial e Avaliação de Máquinas e Equipamentos 16/07/2011 Folha 312/424 10.3.3.2 - Ângulo visual dos espaços para P.C.R. em cinemas — Exemplo Em teatros, auditórios ou similares, a localização dos espaços para P.C.R. e dos assentos para P.M.R. deve ser calculada de forma a garantir a visualização da atividade desenvolvida no Palco. Ângulo visual dos espaços para P.C.R. em teatros — Exemplo A localização dos espaços deve ser calculada traçando-se um ângulo visual de 30º a partir do limite superior da boca de cena até a linha do horizonte visual (L.H.), com a altura de 1,15 m do piso. A altura do piso do palco deve ser inferior à L.H. visual com altura de 1,15 m do piso da localização do espaço para P.C.R. e assentos para P.M.R. Quando existir anteparo em frente aos espaços para P.C.R., sua altura e distância não devem bloquear o ângulo visual de 30º medido a partir da linha visual padrão com altura de 1,15 m do piso até o limite inferior da tela ou local do palco onde a atividade é desenvolvida. Anteparos em arquibancadas — Vista lateral – Exemplo Elaborado por: Analisado por: Professor : Marcelo Gandra Falcone Alessandra Aparecida Vieira Marcelo Gandra Falcone QUANDO IMPRESSO CONSIDERAR PIRATARIA - CÓPIA NÃO AUTORIZADA
  • 313.
    UNINOVE Rev. B Engenharia deAvaliações e Perícias Manutenção Predial e Avaliação de Máquinas e Equipamentos 16/07/2011 Folha 313/424 10.3.3.3 - Dimensões dos espaços para P.C.R. e assentos para P.M.R. e P.O. O espaço para P.C.R. deve possuir as dimensões mínimas de 0,80 m por 1,20 m, acrescido de faixa de no mínimo 0,30 m de largura, localizada na frente, atrás ou em ambas posições. Os espaços para P.C.R. devem estar deslocados 0,30 m em relação à cadeira ao lado para que a pessoa em cadeira de rodas e seus acompanhantes fiquem na mesma direção. Quando os espaços para P.C.R. estiverem localizados em fileiras intermediárias, devem ser garantidas faixas de no mínimo 0,30 m de largura atrás e na frente deles. Os assentos para P.O. devem ter largura equivalente à de dois assentos adotados no local e possuir um espaço livre frontal de no mínimo 0,60 m, conforme figura 152. Estes assentos devem suportar uma carga de no mínimo 250 kg. Planta da disposição dos assentos Elaborado por: Analisado por: Professor : Marcelo Gandra Falcone Alessandra Aparecida Vieira Marcelo Gandra Falcone QUANDO IMPRESSO CONSIDERAR PIRATARIA - CÓPIA NÃO AUTORIZADA
  • 314.
    UNINOVE Rev. B Engenharia deAvaliações e Perícias Manutenção Predial e Avaliação de Máquinas e Equipamentos 16/07/2011 Folha 314/424 Espaços para P.C.R. Fotos de locais reservados para cadeirantes Foto de bebedouro acessível Elaborado por: Analisado por: Professor : Marcelo Gandra Falcone Alessandra Aparecida Vieira Marcelo Gandra Falcone QUANDO IMPRESSO CONSIDERAR PIRATARIA - CÓPIA NÃO AUTORIZADA
  • 315.
    UNINOVE Rev. B Engenharia deAvaliações e Perícias Manutenção Predial e Avaliação de Máquinas e Equipamentos 16/07/2011 Folha 315/424 10.3.3.4 - Palco e bastidores Uma rota acessível deve interligar os espaços para P.C.R. ao palco e aos bastidores. Quando houver desnível entre o palco e a platéia, este pode ser vencido através de rampa com as seguintes características: a) largura de no mínimo 0,90 m; b) inclinação máxima de 1:6 (16,66%) para vencer uma altura máxima de 0,60 m; c) inclinação máxima de 1:10 (10%) para vencer alturas superiores a 0,60 m; d) ter guia de balizamento, não sendo necessária a instalação de guarda-corpo e corrimão. . 10.3.3.5 – Camarins Pelo menos um camarim para cada sexo deve ser acessível. Quando somente existir um camarim de uso unissex, este deve ser acessível. 10.3.3.6 - Dispositivos de tecnologia assistiva Devem ser disponibilizados dispositivos de tecnologia assistiva para atender no palco as pessoas com deficiência visual e pessoas com deficiência auditiva. 10.3.3.7 - Locais de exposições Todos os elementos expostos para visitação pública devem estar em locais acessíveis. Os títulos, textos explicativos ou similares devem também estar em Braille. 10.3.3.8 - Restaurantes, refeitórios, bares e similares Os restaurantes, refeitórios e bares devem possuir pelo menos 5% do total de mesas, com no mínimo uma, acessíveis a P.C.R. As mesas devem ser distribuídas de forma a estar integradas às demais e em locais onde sejam oferecidos todas as comodidades e serviços disponíveis no estabelecimento. Elaborado por: Analisado por: Professor : Marcelo Gandra Falcone Alessandra Aparecida Vieira Marcelo Gandra Falcone QUANDO IMPRESSO CONSIDERAR PIRATARIA - CÓPIA NÃO AUTORIZADA
  • 316.
    UNINOVE Rev. B Engenharia deAvaliações e Perícias Manutenção Predial e Avaliação de Máquinas e Equipamentos 16/07/2011 Folha 316/424 3) Parte: Avaliação Industrial: Máquinas e Equipamentos 0. OBJETIVO DA 3ª PARTE: Expor metodologia para Avaliação de Máquinas e Equipamentos com os 2 Tipos de avaliação, normas e finalidades; apresentação da NBR 14.653-5/2006 – norma técnica da ABNT que dispõe sobre avaliação de bens – parte 5: máquinas, equipamentos, instalações bens industriais em geral; conceituação básica e definições; metodologia aplicável; especificação das avaliações quanto à fundamentação; critérios de depreciação; trabalhos preparatórios e desenvolvimento de campo; elaboração de Laudo Prático – exemplo prático – quadro com o modelo de Laudo de Avaliação de Máquinas, equipamentos e instalações Industriais; vida útil e tabelas de vida útil econômica. 1. A AVALIAÇÃO 1.1 ESTIMATIVA DE PREÇO E AVALIAÇÃO Estimativa de preço pode ser definida como orçamento preliminar e Avaliação como a determinação técnica do valor de um imóvel, de um fruto, equipamento ou de um direito. O resultado técnico de uma avaliação é o laudo, onde são apresentados todos os elementos esclarecedores e as suas conclusões da avaliação. 1.2 A AVALIAÇÃO COMO ESPÉCIE DO GÊNERO PERÍCIA A. CONCEITO A avaliação técnica de qualquer bem se respalda na Lei federal nº 5.194/66, de 24/12/66, que diz: Avaliações, vistorias, perícias e pareceres são atribuições de Engenheiros, Arquitetos e Agrônomos, devidamente registrados no CREA. Resolução nº 218, de 29/06/1973, do CONFEA, que fixa as atribuições profissionais do Engenheiro, Arquiteto e Engenheiro Agrônomo nas diversas modalidades Elaborado por: Analisado por: Professor : Marcelo Gandra Falcone Alessandra Aparecida Vieira Marcelo Gandra Falcone QUANDO IMPRESSO CONSIDERAR PIRATARIA - CÓPIA NÃO AUTORIZADA
  • 317.
    UNINOVE Rev. B Engenharia deAvaliações e Perícias Manutenção Predial e Avaliação de Máquinas e Equipamentos 16/07/2011 Folha 317/424 Resolução nº 345, de 27/07/1990, do CONFEA, que dispõe quanto ao exercício por profissional de nível superior das atividades de Engenharia de Avaliações e Perícias de Engenharia. As perícias e avaliações de bens móveis e imóveis, suas partes integrantes e pertences, máquinas e instalações industriais, obras, serviços, bens e direitos, é matéria essencialmente técnica que exige qualificação específica. As perícias e avaliações desses bens é função do diplomado em Engenharia, Arquitetura, Agronomia, Geologia, Geografia e Meteorologia, dentro das respectivas atribuições fixadas no Art. 7º, alínea "c", da Lei nº 5.194, de 24 DEZ 1966, e discriminadas pela Resolução nº 218, de 29 JUN 1973; o disposto na Lei nº 7.270, de 10 DEZ 1984; nada obstante, as dúvidas que ainda surgem por parte de órgãos e entidades na aplicação de normas que exigem laudos de avaliação e perícia para determinados efeitos legais, tais como Lei nº 6.404/76, de 15 DEZ 1976, Lei nº 24.150/34 e Lei nº 6.649/79;o disposto nas Leis nº 8.020 e 8.031, ambas de 12 ABR 1990, As diretrizes para se avaliar estão preconizadas na norma brasileira, elaborada na ABNT- Associação Brasileira de Normas Técnicas, NBR 14653 AVALIAÇÃO DE BENS e é composta pelas seguintes partes:        Avaliação de bens – Parte 1: Procedimentos gerais. Avaliação de bens – Parte 2: Imóveis urbanos. Avaliação de bens – Parte 3: Imóveis rurais. Avaliação de bens – Parte 4: Empreendimentos. Avaliação de bens – Parte 5: Máquinas, equipamentos, instalações e bens industriais em geral. Avaliação de bens – Parte 6: Recursos naturais e ambientais (Em elaboração). Avaliação de bens – Parte 7: Patrimônios históricos (Em elaboração). Decreto Federal nº 81.621, de 03/05/1978, que aprova o Quadro Geral de Unidades de Medida OBS: Antes da Norma: NBR 14.653 =-Avaliação de bens – Parte 5: Máquinas, equipamentos, instalações e bens industriais em geral, a norma utilizada era a NORMA BRASILEIRA ABNT NBR 8977:1985 - Avaliação de máquinas, equipamentos, instalações e complexos industriais. Ele teve seu CANCELAMENTO COM SUBSTITUIÇÂO, publicado em 05.06.2006 e válido a partir de 05.07.2006. O cancelamento com substituição da ABNT NBR 8977:1985 foi solicitado pelo Comitê Brasileiro de Construção Civil (ABNT/CB02), por intermédio da Comissão de Estudo de Avaliação na Construção Civil Elaborado por: Analisado por: Professor : Marcelo Gandra Falcone Alessandra Aparecida Vieira Marcelo Gandra Falcone QUANDO IMPRESSO CONSIDERAR PIRATARIA - CÓPIA NÃO AUTORIZADA
  • 318.
    UNINOVE Rev. B Engenharia deAvaliações e Perícias Manutenção Predial e Avaliação de Máquinas e Equipamentos 16/07/2011 Folha 318/424 B. OBJETIVO Determinação de valor para: − − − − − − − − − − Garantia de operações Compra e venda Locação Ações judiciais Valores de impostos prediais, territoriais, de transmissão Planta de valores genéricos Decisão sobre investimentos Seguros Fusões ou cisões de empresas Servidões de passagem C. PRINCÍPIOS GERAIS DE AVALIAÇÃO I – PRINCÍPIO OU “LEI” DA OFERTA E DA PROCURA (“SUPPLY AND DEMAND”) Essa “lei” é bem conhecida por todos em vários nichos de mercado, não é diferente do mercado imobiliário, havendo o equilíbrio do preço médio de mercado no equilíbrio da oferta e da procura. II – PRINCÍPIO DA PERMANÊNCIA (“PERMANENCE”) Princípio que, embora reconheça a variabilidade dos preços ao longo do tempo, admite que mantidas as condições do bem e do mercado vigentes por ocasião da avaliação, existe um lapso de tempo em que os preços podem se manter constantes. Elaborado por: Analisado por: Professor : Marcelo Gandra Falcone Alessandra Aparecida Vieira Marcelo Gandra Falcone QUANDO IMPRESSO CONSIDERAR PIRATARIA - CÓPIA NÃO AUTORIZADA
  • 319.
    UNINOVE Rev. B Engenharia deAvaliações e Perícias Manutenção Predial e Avaliação de Máquinas e Equipamentos 16/07/2011 Folha 319/424 III – PRINCÍPIO DA PROPORCIONALIDADE (“PROPORTION PRINCIPLE”) Princípio segundo o qual dois bens semelhantes, em mercados semelhantes, têm preços semelhantes. Em conseqüência, as eventuais diferenças de preços serão proporcionais às diferenças entre as características dos bens e dos respectivos mercados. Esta condição é a ideal em uma avaliação, pois nesse caso, estaríamos avaliando bens semelhantes comparando-os entre si. Esta metodologia é denominada na Engenharia de Avaliações como “Método Comparativo Direto”. IV – PRINCÍPIO DA SUBSTITUIÇÃO, OU DA EQUIVALÊNCIA (“SUBSTITUTION PRINCIPLE”) Princípio segundo o qual dois bens fungíveis, em mercados semelhantes, têm preços equivalentes, numa certa data. V – PRINCÍPIO DA RENTABILIDADE (“RENT PRINCIPLE”) Princípio segundo o qual o valor de um imóvel que se encontra em exploração econômica é função da expectativa de renda que previsivelmente proporcionará no futuro. VI – PRINCÍPIO DA FINALIDADE (“FINALITY PRINCIPLE”) Princípio segundo o qual a finalidade da avaliação condiciona o método e as técnicas de avaliação a serem empregadas. Este princípio é um dos principais que regem as Normas Avaliatórias e a Engenharia de Avaliações. VII – PRINCÍPIO DO MAIOR E MELHOR USO (“HIGHEST AND BEST USE”) Princípio segundo o qual o valor de um bem, independentemente do uso ou do seu aproveitamento, será o que resulte economicamente mais aconselhável, dentro das possibilidades legais e físicas, e desde que absorvíveis pelo mercado. VIII – PRINCÍPIO DA PROBABILIDADE (“PROBABILITY PRINCIPLE”) Princípio segundo o qual quando existirem vários cenários ou possibilidades de eleição razoáveis, devem ser escolhidos aqueles que possam ser considerados os mais prováveis. IX – PRINCÍPIO DA PRUDÊNCIA (“PRUDENCE PRINCIPLE”) Princípio segundo o qual são adotados os valores mais conservadores que permitam maior liquidez ao bem. À prudência se junta o bom senso do avaliador. X – PRINCÍPIO DA TRANSPARÊNCIA (“TRANSPARENCY PRINCIPLE”) Princípio segundo o qual o laudo ou parecer avaliatório de um bem deve conter a informação necessária e suficiente para sua fácil compreensão e detalhar as hipóteses e documentações utilizadas. Elaborado por: Analisado por: Professor : Marcelo Gandra Falcone Alessandra Aparecida Vieira Marcelo Gandra Falcone QUANDO IMPRESSO CONSIDERAR PIRATARIA - CÓPIA NÃO AUTORIZADA
  • 320.
    UNINOVE Rev. B Engenharia deAvaliações e Perícias Manutenção Predial e Avaliação de Máquinas e Equipamentos 16/07/2011 Folha 320/424 2. PREÇO, CUSTO, MERCADO, VALOR E UTILIDADE A imprecisão da linguagem nos diferentes segmentos profissionais pode dar lugar a más interpretações e maus entendidos. Este é um problema particular quando as palavras de uso comum em um idioma, também têm especiais significados dentro de certa disciplina. É o caso dos termos, preço, custo, mercado e valor quando utilizados na disciplina da avaliação. 2.1 CUSTO É o preço pago pelos bens e serviços ou a quantidade requerida para criar ou produzir o bem ou o serviço. Se considerada para reposição de determinado bem, pode ser direto ou indireto:  CUSTO DIRETO DE PRODUÇÃO: Gastos com insumos, inclusive mão de obra, na produção de um bem.  CUSTO INDIRETO DE PRODUÇÃO: Despesas administrativas e financeiras, benefícios e demais ônus e encargos necessários à produção de um bem. Elaborado por: Analisado por: Professor : Marcelo Gandra Falcone Alessandra Aparecida Vieira Marcelo Gandra Falcone QUANDO IMPRESSO CONSIDERAR PIRATARIA - CÓPIA NÃO AUTORIZADA
  • 321.
    UNINOVE Rev. B Engenharia deAvaliações e Perícias Manutenção Predial e Avaliação de Máquinas e Equipamentos 16/07/2011 Folha 321/424 Estes custos podem levar em conta a depreciação, assim definida:  CUSTO DE REEDIÇÃO: Custo de reprodução, descontada depreciação do bem, tendo em vista o estado em que se encontra. a  CUSTO DE REPRODUÇÃO: Gasto necessário para reproduzir um bem, sem considerar eventual depreciação. 2.2 PREÇO É um termo que se utiliza para a quantidade inicial que se pede, oferece ou pagamento por um bem ou serviço. O preço de venda é um fato histórico, desde que seja revelado publicamente e de forma correta. Devido às capacidades financeiras, às motivações ou interesses especiais de certo comprador e/ou vendedor, o preço que se paga pelos bens ou serviços pode ou não ter alguma relação com o valor que outros atribuem aos bens ou serviços. Entretanto, o preço geralmente é um indicador de um valor relativo que o comprador e/ou vendedor particular dão aos bens ou serviços sob circunstâncias particulares. 2.3 MERCADO É o contexto no qual se comercializam bens e serviços entre compradores e vendedores através de um mecanismo de preços. O conceito de mercado implica que os bens e/ou serviços podem ser comercializados entre compradores e vendedores sem que exista qualquer relação prévia entre os mesmos. Cada uma das partes responderá às relações de oferta e demanda e a outros fatores de fixação de preços às necessidades e desejos individuais, assim como às suas capacidades e conhecimentos, com entendimento da utilidade relativa dos bens e / ou serviços. O mercado pode ser local, regional, nacional ou internacional. Quando se alteram ou interrompem as condições normais do mercado, ou quando o desequilíbrio entre a oferta e a demanda dá origem a preços de mercado que não satisfazem a definição de Valor de Mercado, o Avaliador enfrentará um difícil problema de avaliação. Conforme aumentam a indisponibilidade e a aplicabilidade dos dados de mercado, a tarefa de avaliação pode exigir maior grau de competência, experiência e julgamento por parte do Avaliador, assim como a aplicação mais cuidadosa dos princípios avaliatórios. Quanto mais restrito for o mercado, o processo avaliatório apresentará maiores dificuldades. Elaborado por: Analisado por: Professor : Marcelo Gandra Falcone Alessandra Aparecida Vieira Marcelo Gandra Falcone QUANDO IMPRESSO CONSIDERAR PIRATARIA - CÓPIA NÃO AUTORIZADA
  • 322.
    UNINOVE Rev. B Engenharia deAvaliações e Perícias Manutenção Predial e Avaliação de Máquinas e Equipamentos 16/07/2011 Folha 322/424 2.4 UTILIDADE É um termo relativo ou comparativo e não uma condição absoluta que reflete o potencial de uso e vocação de um bem. Pode ser refletido em leis de usos e ocupação de planos urbanos, e mensurados em zonas homogêneas de ocupação. Um dos critérios chaves na avaliação de qualquer bem é a sua utilidade. Os procedimentos que se empregam no processo de avaliação têm o objetivo comum identificar o grau de utilidade do bem que se está avaliando. Este processo requer a interpretação do conceito de utilidade. A utilidade é um termo relativo ou comparativo e não uma condição absoluta. Por exemplo, a utilidade de um terreno agrícola se mede normalmente por sua capacidade de uso de solo, mensurado nas notas agronômicas, e seus valores, em condições normais, se aterão as suas capacidades de uso. Entretanto para um terreno urbano, seu potencial estará refletido na capacidade de ocupação e uso definidos pelas leis vigentes, e por sua vocação definida pelo mercado, como conseqüência, o valor do terreno se estabelece avaliando sua utilidade em termos dos fatores legais, físicos, funcionais, econômicos e ambientais que define sua capacidade produtiva. Fundamentalmente, a avaliação de bens se rege pela forma específica em que se utiliza a propriedade e / ou como se comercializaria normalmente no mercado. Para certas propriedades, a melhor utilidade se obtém se a propriedade em questão opera de maneira individual. Outras propriedades têm maior utilidade se operarem como parte de um grupo de propriedades, por exemplo, uma rede de lojas pode valer mais do que a soma dos valores das lojas. Portanto, deve-se diferenciar a utilidade de uma propriedade individual e a uma propriedade que é parte de um grupo. O Avaliador deve enfocar um bem como seu mercado o considera, se como unidade isolada, ou integrado a outros bens. Tipicamente, o Avaliador estima e informa o valor da propriedade como uma entidade individual. As propriedades isoladas que constituem operações independentes autocontidas, normalmente trocam de dono de maneira individual e são valoradas desta forma. Se tais propriedades tivessem agregarem valor com a associação funcional ou econômica com outras propriedades, este valor adicional ou especial pode ser considerado. Entretanto o avaliador deve fazer as ressalvas ou explicitar as condições que suportam este valor. Este fato é muito comum em terrenos contíguos em áreas de incorporações imobiliárias A utilidade se mede com uma perspectiva de longo prazo, geralmente durante a vida útil normal de uma propriedade ou grupo de propriedades. Entretanto, há ocasiões em que algumas propriedades se tornam obsoletas, ou são eliminadas da produção, podem adaptar-se a um uso ou função diversa, ou talvez simplesmente estejam inativas durante um tempo específico. Em outros casos, as circunstâncias do mercado externo, sejam políticas ou econômicas, podem reger a redução na produção por um período de tempo indefinido. Nestes casos é muito importante, relevar as condições do mercado e os alcances do seu relatório, e definir claramente que valor foi apresentado. Elaborado por: Analisado por: Professor : Marcelo Gandra Falcone Alessandra Aparecida Vieira Marcelo Gandra Falcone QUANDO IMPRESSO CONSIDERAR PIRATARIA - CÓPIA NÃO AUTORIZADA
  • 323.
    UNINOVE Rev. B Engenharia deAvaliações e Perícias Manutenção Predial e Avaliação de Máquinas e Equipamentos 16/07/2011 Folha 323/424 2.5 VALOR É um conceito econômico e não um fato. É uma estimação do preço que se pagará pelos bens ou serviços em um dado momento, de acordo com uma finalidade particular da avaliação para uma data de referência. 2.6 VALOR DE MERCADO E OUTROS CONCEITOS DE VALOR BEM SIMILAR: Bem com características relevantes na formação de valor, equivalentes às do avaliando, tais como função, desempenho operacional e estrutura construtiva CUSTO DIRETO DE INSTALAÇÃO: Recursos monetários referentes aos gastos de montagem, bases e estruturas específicas de apoio, fretes, taxas e impostos diretos CUSTO INDIRETO DE INSTALAÇÃO: Recursos monetários referentes a projetos, gerenciamento da montagem, "start-up", taxas e impostos inerentes e despesas financeiras DEPRECIAÇÃO INICIAL: Perda de valor de um bem em função da descaracterização do bem como novo DEPRECIAÇÃO POR DESMONTAGEM: Depreciação de um bem devido a efeitos deletérios decorrentes dos trabalhos normais necessários à remoção do equipamento EQUIPAMENTO: Qualquer unidade auxiliar componente de máquina GOOD-WILL: Diferença, quando positiva, entre o valor econômico e o valor patrimonial, aplicável a uma unidade industrial IDADE APARENTE: Idade estimada de um bem, em função de suas características e estado de conservação no momento da vistoria INSTALAÇÕES: Conjunto de materiais, sistemas, redes, equipamentos e serviços, para apoio operacional a uma máquina isolada, linha de produção ou unidade industrial, conforme o grau de agregação. LINHA DE PRODUÇÃO: Conjunto de bens (máquinas, equipamentos, acessórios, dispositivos e instalações, entre ouros) integrados em um processo produtivo. Elaborado por: Analisado por: Professor : Marcelo Gandra Falcone Alessandra Aparecida Vieira Marcelo Gandra Falcone QUANDO IMPRESSO CONSIDERAR PIRATARIA - CÓPIA NÃO AUTORIZADA
  • 324.
    UNINOVE Rev. B Engenharia deAvaliações e Perícias Manutenção Predial e Avaliação de Máquinas e Equipamentos 16/07/2011 Folha 324/424 LIQÜIDAÇÃO FORÇADA: Condição relativa à hipótese de uma venda compulsória ou em prazo menor que o médio de absorção pelo mercado. MÁQUINA: Todo e qualquer aparelho, composto por um ou mais equipamentos, destinado a executar uma ou mais funções específicas a um trabalho ou à produção industrial. MANUTENÇÃO: Conjunto de ações preventivas ou corretivas necessárias para preservar as condições normais de utilização de um bem. MANUTENÇÃO CORRETIVA: Conjunto de ações que visam corrigir falhas operacionais de um bem. MANUTENÇÃO PREVENTIVA: Conjunto de ações de caráter programado em um bem, envolvendo a inspeção ou troca prévia de componentes, de acordo com planejamento que vise garanti o seu perfeito funcionamento MANUTENÇÃO PREDITIVA: Conjunto de ações de caráter programado em um bem, por meio de monitoramento contínuo de seus componentes e com o auxílio de inspeção não destrutiva (análise de vibrações, termografia, entre outros) MÓDULO: Conjunto de máquinas, equipamentos e instalações que constitui uma unidade integrada a um processo, segmento ou etapa de produção e que pode ser montado ou fabricado externamente (exemplos: city-gates, subestação elétrica compacta, turbinas e outros) PREÇO DE LIQUIDAÇÃO FORÇADA: Quantia auferível pelo bem na hipótese de uma venda compulsória ou em prazo menor que o médio de absorção pelo mercado SALVADO: Objeto que se consegue resgatar de um sinistro e que ainda possui valor SEGURO: Transferência de risco garantida por contrato, pelo qual uma das partes se obriga, mediante cobrança de prêmio, a indenizar a outra pela ocorrência de sinistro coberto pela apólice SINISTRO: Evento que causa perda financeira SISTEMA: Conjunto de máquinas, equipamentos e instalações para serviços específicos da unidade industrial. Exemplo: sistema de vapor, elétrico, ar comprimido, etc. SISTEMA INTEGRADO: Conjunto de máquinas ou equipamentos projetado para executar um determinado trabalho ou função, de forma sincronizada, por meio de ligações de qualquer natureza, que é avaliado em grupo Elaborado por: Analisado por: Professor : Marcelo Gandra Falcone Alessandra Aparecida Vieira Marcelo Gandra Falcone QUANDO IMPRESSO CONSIDERAR PIRATARIA - CÓPIA NÃO AUTORIZADA
  • 325.
    UNINOVE Rev. B Engenharia deAvaliações e Perícias Manutenção Predial e Avaliação de Máquinas e Equipamentos 16/07/2011 Folha 325/424 UNIDADE INDUSTRIAL: Conjunto de terreno, infra-estruturas, edificações e benfeitorias, máquinas, equipamentos, instalações, móveis e utensílios, destinados à produção industrial VALOR DE DESMONTE: Custo de reedição no fornecedor de um bem ou conjunto de bens, deduzidas as despesas de desmontagem, remoção, revisão, recondicionamento e comercialização. Valor Patrimonial para uma situação em que o empreendimento não apresente atratividade econômica. VALOR ECONÔMICO: Valor presente da renda líquida auferível pelo módulo ou unidade industrial, durante sua vida econômica, a uma taxa de desconto correspondente ao custo de oportunidade de igual risco VALOR DE MERCADO: Quantia mais provável pela qual se negociaria voluntariamente e conscientemente um bem, numa data de referência, dentro das condições do mercado vigente. VALOR DE MERCADO PARA COMPRA : Valor provável pelo qual o proprietário industrial reporia um bem isolado no mercado, no estado em que se encontra. Exemplo: aquisição de máquinas operatrizes pela indústria no mercado de usados VALOR DE MERCADO PARA VENDA: Valor provável que o proprietário industrial de um bem isolado obteria no mercado para a sua venda no estado e no local em que se encontra VALOR EM RISCO: Valor representativo da parcela do bem que se deseja segurar. VALOR PATRIMONIAL: Valor correspondente à totalidade dos bens de pessoa física ou jurídica. VALOR RESIDUAL: Quantia representativa do valor do bem ao final de sua vida útil. VALOR DE INDENIZAÇÃO: Valor de bens, não obrigatoriamente de mercado, destinado a ressarcimento de prejuízos em desapropriações, servidões ou congêneres, reedição ou re-composição de bens. VALOR EM RISCO: Valor representativo da parcela do bem que se deseja segurar e que pode corresponder ao valor máximo segurável VALOR DE SUCATA: Valor de mercado dos materiais reaproveitáveis de um bem, na condição de desativação, sem que estes sejam utilizados para fins produtivos Elaborado por: Analisado por: Professor : Marcelo Gandra Falcone Alessandra Aparecida Vieira Marcelo Gandra Falcone QUANDO IMPRESSO CONSIDERAR PIRATARIA - CÓPIA NÃO AUTORIZADA
  • 326.
    UNINOVE Rev. B Engenharia deAvaliações e Perícias Manutenção Predial e Avaliação de Máquinas e Equipamentos 16/07/2011 Folha 326/424 VALOR EM USO: Valor de um bem, em condições de operação, no estado atual, como uma parte integrante útil de uma indústria, incluídas, quando presentes, as despesas de projeto, embalagem, impostos, fretes e montagem VALOR EM USO: Valor do bem em funcionamento, no estado de funcionamento em que encontra, para um empreendimento, consideradas suas respectivas instalações. 3. LAUDO DE AVALIAÇÃO 3.1 MODALIDADES DE LAUDOS A ABNT através das normas de avaliação indica as seguintes modalidades para apresentação de um laudo: − Simplificado – contém de forma sucinta as informações necessárias ao seu entendimento. − Completo – contém todas as informações necessárias e suficientes para ser auto explicável. 3.2 ROTEIRO BÁSICO DE APRESENTAÇÃO DE LAUDO O laudo deverá conter pelo menos os seguintes títulos: INTERESSADO Pessoa física ou jurídica que encomendam o trabalho avaliatório. PROPRIETÁRIO Quando for possível a sua identificação. OBJETIVO DO TRABALHO − Objetivo da avaliação. − Grau de detalhamento das atividades básicas. − Especificação da avaliação (Para Oficiais, considerar sempre Parecer Técnico). INDIVIDUALIZAÇÃO DO OBJETO DA AVALIAÇÃO Documentação Solicitar ou buscar o fornecimento da documentação relativa ao bem, necessária à realização do trabalho, como: − Plantas, memoriais descritivos, notas fiscais, documentação fotográfica. − Demais elementos que influem no valor total do bem (Fatores valorizantes ou desvalorizastes decorrentes). Elaborado por: Analisado por: Professor : Marcelo Gandra Falcone Alessandra Aparecida Vieira Marcelo Gandra Falcone QUANDO IMPRESSO CONSIDERAR PIRATARIA - CÓPIA NÃO AUTORIZADA
  • 327.
    UNINOVE Rev. B Engenharia deAvaliações e Perícias Manutenção Predial e Avaliação de Máquinas e Equipamentos 16/07/2011 Folha 327/424 Conhecimento da Documentação: Na impossibilidade da obtenção de toda a documentação necessária, o avaliador deverá julgar sobre a possibilidade de elaborar a avaliação. Em caso positivo, deverá deixar claramente expressas as ressalvas relativas à insuficiência ou incoerência da informação, bem como os pressupostos assumidos em função dessas condições. VISTORIA − NENHUMA AVALIAÇÃO PODERÁ PRESCINDIR DA VISTORIA. Em casos excepcionais, quando for impossível o acesso ao bem avaliando, admite-se a adoção de uma situação paradigma, que deverá ser explicitada no laudo. − A vistoria deve ser efetuada com o objetivo de conhecer e caracterizar o bem avaliando e sua adequação ao seu segmento de mercado, daí resultando condições para a orientação da coleta de dados. − É recomendável registrar as características físicas e de utilização do bem e outros aspectos relevantes à formação do valor. − O conhecimento de estudos, projetos ou perspectivas tecnológicas que possam vir a afetar o valor do bem avaliando deverá ser explicitado e suas conseqüências apreciadas. METODOLOGIA A metodologia escolhida deve ser compatível com a natureza do bem avaliando, a finalidade da avaliação e os dados de mercado disponíveis. Para a identificação do valor de mercado, sempre que possível preferir o método comparativo direto de dados de mercado, conforme definido no item 8. PESQUISA DE VALORES Coleta de Dados: É recomendável que seja planejada com antecedência, tendo em vista: as características do bem avaliando, disponibilidade de recursos, informações e pesquisas anteriores, plantas e documentos, prazo de execução dos serviços, enfim, tudo que possa esclarecer aspectos relevantes para a avaliação. - Aspectos Quantitativos É recomendável buscar a maior quantidade possível de dados de mercado, com atributos comparáveis aos do bem avaliando. Elaborado por: Analisado por: Professor : Marcelo Gandra Falcone Alessandra Aparecida Vieira Marcelo Gandra Falcone QUANDO IMPRESSO CONSIDERAR PIRATARIA - CÓPIA NÃO AUTORIZADA
  • 328.
    UNINOVE Rev. B Engenharia deAvaliações e Perícias Manutenção Predial e Avaliação de Máquinas e Equipamentos 16/07/2011 Folha 328/424 - Aspectos Qualitativos Na fase de coleta de dados é recomendável: a) buscar dados de mercado com atributos mais semelhantes possíveis aos do bem avaliando; b) identificar e diversificar as fontes de informação, sendo que as informações devem ser cruzadas, tanto quanto possível, com objetivo de aumentar a confiabilidade dos dados de mercado; c) identificar e descrever as características relevantes dos dados de mercado coletados; d) buscar dados de mercado de preferência contemporâneos com a data de referência da avaliação. Na coleta de dados de mercado relativos a ofertas é recomendável buscar informações sobre o tempo de exposição no mercado e, no caso de transações, verificar a forma de pagamento praticada e a data em que ocorreram. DETERMINAÇÃO DO VALOR FINAL - Tratamento dos Dados Os dados devem ser tratados para obtenção de resultado confiável de acordo com a metodologia escolhida. A metodologia escolhida é a que melhor se aplica ao mercado de inserção do bem, permitindo-se: − Arredondar o resultado de sua avaliação, desde que o ajuste final não varie mais de 1% do valor estimado; − Indicar a faixa de variação de preços do mercado admitida como tolerável em relação ao valor final, desde que indicada a probabilidade associada. - Diagnóstico do Mercado: O avaliador, conforme a finalidade da avaliação, deve analisar o mercado onde se situa o bem avaliando de forma a indicar, no laudo, a liquidez deste bem e, tanto quanto possível, relatar a estrutura, a conduta e o desempenho do mercado. CONCLUSÕES - Com os fundamentos resultantes da análise final. DATA − Da vistoria e do laudo. − Nome e assinatura. ANEXOS − Plantas, documentação fotográfica, pesquisa de valores, etc. Elaborado por: Analisado por: Professor : Marcelo Gandra Falcone Alessandra Aparecida Vieira Marcelo Gandra Falcone QUANDO IMPRESSO CONSIDERAR PIRATARIA - CÓPIA NÃO AUTORIZADA
  • 329.
    UNINOVE Rev. B Engenharia deAvaliações e Perícias Manutenção Predial e Avaliação de Máquinas e Equipamentos 16/07/2011 Folha 329/424 4. UNIDADES LEGAIS DE MEDIDA 4.1 O SISTEMA INTERNACIONAL DE UNIDADES - SI As informações aqui apresentadas irão ajudar você a compreender melhor e a escrever corretamente as unidades de medida adotadas no Brasil. A necessidade de medir é muito antiga e remonta à origem das civilizações. Por longo tempo cada país, cada região, teve o seu próprio sistema de medidas, baseado em unidades arbitrárias e imprecisas, como por exemplo, aquelas baseadas no corpo humano: palmo, pé, polegada, braça. Isso criava muitos problemas para o comércio, porque as pessoas de uma região não estavam familiarizadas com o sistema de medida das outras regiões. Imagine a dificuldade em comprar ou vender produtos cujas quantidades eram expressas em unidades de medida diferentes e que não tinham correspondência entre si. Em 1789, numa tentativa de resolver o problema, o Governo Republicano Francês pediu à Academia de Ciências da França que criasse um sistema de medidas baseado numa "constante natural". Assim foi criado o Sistema Métrico Decimal. Posteriormente, muitos outros países adotaram o sistema, inclusive o Brasil, aderindo à "Convenção do Metro". O Sistema Métrico Decimal adotou, inicialmente, três unidades básicas de medida: o metro, o litro e o quilograma. Entretanto, o desenvolvimento científico e tecnológico passou a exigir medições cada vez mais precisas e diversificadas. Por isso, em 1960, o sistema métrico decimal foi substituído pelo Sistema Internacional de Unidades – SI, mais complexo e sofisticado, adotado também pelo Brasil em 1962 e ratificado pela Resolução nº 12 de 1988 do Conselho Nacional de Metrologia, Normalização e Qualidade Industrial - Conmetro, tornando-se de uso obrigatório em todo o Território Nacional. ATENÇÃO: CUIDADO AO ESCREVER! PORTUGUÊS VIRAM MOTIVO DE PIADAS. LAUDO COM ERROS DE Elaborado por: Analisado por: Professor : Marcelo Gandra Falcone Alessandra Aparecida Vieira Marcelo Gandra Falcone QUANDO IMPRESSO CONSIDERAR PIRATARIA - CÓPIA NÃO AUTORIZADA
  • 330.
    UNINOVE Rev. B Engenharia deAvaliações e Perícias Manutenção Predial e Avaliação de Máquinas e Equipamentos 16/07/2011 Folha 330/424 Escrever de forma simples e objetiva. Exemplo: 1) ADVOGADO Fiz tão bem o meu curso de Direito que, no dia que me formei, processei a Faculdade, ganhei a causa e recuperei todas as mensalidades que havia pago. (Fred Allen) Avaliação da situação pelo Advogado: Doutores, “Data Vênia”, após apresentação dos autos as partes terão tempo para sustentação ante definir, casuisticamente os fatos consignados e prolatados, caso o bastante, perfazem o obstante causa para transito, da Prosopopéia para acalantar bovinos, com direito a replicas e tréplicas “ad eternum” , surtem “periculum in moro”. 2) ENGENHEIRO ESPECIALISTA Um especialista é aquele que explica algo fácil de maneira confusa, de tal modo que faz você pensar que a confusão é culpa sua. (William Castle). Avaliação da Situação pelo especialista: Colóquio para determinação pluriconforme, entre representantes do Reino: Animalia, Filo: Chordata, Classe: Mammalia, Ordem: Artiodactyla, Família: Bovidae, Subfamília: Bovinaeda mesma espécie, Tribos Bovini, Boselaphini, Strepsicerotini, para produzir efeitos causando um estado ordinário de consciência, complementar ao da vigília (ou estado desperto), em que há repouso normal e periódico, caracterizado, tanto no ser humano como nos outros vertebrados, pela suspensão temporária da atividade perceptivo-sensorial e motora voluntária. 3) PERITO ENGENHEIRO/ARQUITETO: Pra não engordar há quem coma somente verduras. Os elefantes só comem verdura. Pra não engordar há quem coma somente peixe. As baleias só comem peixe. Leis da Dieta. [ Ed wa rd Alo ys iu s M u rph y ] Avaliação da Situação pelo Perito: E conversa para Boi Dormir. Elaborado por: Analisado por: Professor : Marcelo Gandra Falcone Alessandra Aparecida Vieira Marcelo Gandra Falcone QUANDO IMPRESSO CONSIDERAR PIRATARIA - CÓPIA NÃO AUTORIZADA
  • 331.
    UNINOVE Rev. B Engenharia deAvaliações e Perícias Manutenção Predial e Avaliação de Máquinas e Equipamentos 16/07/2011 Folha 331/424 4.2 NOME E SÍMBOLO (COMO ESCREVER AS UNIDADES SI) Elaborado por: Analisado por: Professor : Marcelo Gandra Falcone Alessandra Aparecida Vieira Marcelo Gandra Falcone QUANDO IMPRESSO CONSIDERAR PIRATARIA - CÓPIA NÃO AUTORIZADA
  • 332.
    UNINOVE Rev. B Engenharia deAvaliações e Perícias Manutenção Predial e Avaliação de Máquinas e Equipamentos 16/07/2011 Folha 332/424 Elaborado por: Analisado por: Professor : Marcelo Gandra Falcone Alessandra Aparecida Vieira Marcelo Gandra Falcone QUANDO IMPRESSO CONSIDERAR PIRATARIA - CÓPIA NÃO AUTORIZADA
  • 333.
    UNINOVE Rev. B Engenharia deAvaliações e Perícias Manutenção Predial e Avaliação de Máquinas e Equipamentos 16/07/2011 Folha 333/424 5. TÓPICOS DE MATEMÁTICA FINANCEIRA 5.1 A NECESSIDADE PRÁTICA NA AVALIAÇÃO As avaliações de imóveis devem ser feitas sempre a partir de valores unitários a vista (R$/m2, R$/ha, R$/alq., etc.). Na pesquisa de uma amostra podem surgir fatos de mercado onde os valores são negociados a prazos. 5.2 A AVALIAÇÃO DE BENS FINANCIADOS A visualização de um problema envolvendo receitas e despesas que ocorrem em instantes diferentes de tempo é bastante facilitada por uma representação gráfica simples chamada de diagrama de fluxo de caixa. Elaborado por: Analisado por: Professor : Marcelo Gandra Falcone Alessandra Aparecida Vieira Marcelo Gandra Falcone QUANDO IMPRESSO CONSIDERAR PIRATARIA - CÓPIA NÃO AUTORIZADA
  • 334.
    UNINOVE Rev. B Engenharia deAvaliações e Perícias Manutenção Predial e Avaliação de Máquinas e Equipamentos 16/07/2011 Folha 334/424 5.3 REGIMES DE CAPITALIZAÇÃO: CÁLCULO DO VALOR PRESENTE (P) Relação entre P e F A transformação de um valor presente em um montante no futuro e vice-versa permite resolver problemas do tipo: Qual valor P que deverá ser investido hoje a uma determinada taxa de juros para se obter uma quantia F após certo tempo? Investindo hoje uma quantia P a uma taxa i, qual a quantia F obtida após n períodos? As expressões matemáticas para resolução do problema são: Exemplo: Consegui um empréstimo de R$ 10.000,00 em um banco que cobra 5% ao mês de taxa de juros. Quanto deverei pagar se o prazo de empréstimo é de 6 meses? P = R$ 10.000,00 i = 5% ou 0,05 n = 6 meses 6 F= R$ 10.000,00 (1+0,05) = R$ 13.400,96 Exemplo: Comprei um imóvel e devo dar um balão daqui a 4 meses de R$ 20.000,00. Supondo uma taxa de mercado igual a 3% ao mês. Qual deveria ser o desconto para pagamento à vista? Elaborado por: Analisado por: Professor : Marcelo Gandra Falcone Alessandra Aparecida Vieira Marcelo Gandra Falcone QUANDO IMPRESSO CONSIDERAR PIRATARIA - CÓPIA NÃO AUTORIZADA
  • 335.
    UNINOVE Rev. B Engenharia deAvaliações e Perícias Manutenção Predial e Avaliação de Máquinas e Equipamentos 16/07/2011 Folha 335/424 Exemplo: Comprei uma casa cujo preço a vista é de R$ 100.000,00. Supondo ter dado uma entrada de R$ 40.000,00 e proposto pagar o restante em 24 meses, qual será o valor da prestação se a taxa mensal é de 5% ao mês? Exemplo: Num trabalho de avaliação, deparamos com um imóvel à venda nas seguintes condições: Entrada de R$ 25.000,00 e saldo de 15 prestações mensais fixas de R$ 1.000,00. Supondo a taxa mensal de 4% ao mês, qual o valor a vista? Elaborado por: Analisado por: Professor : Marcelo Gandra Falcone Alessandra Aparecida Vieira Marcelo Gandra Falcone QUANDO IMPRESSO CONSIDERAR PIRATARIA - CÓPIA NÃO AUTORIZADA
  • 336.
    UNINOVE Rev. B Engenharia deAvaliações e Perícias Manutenção Predial e Avaliação de Máquinas e Equipamentos 16/07/2011 Folha 336/424 6. CRITÉRIOS PARA DEPRECIAÇÃO FÍSICA DE BENS 6.1 A NECESSIDADE PRÁTICA NA AVALIAÇÃO DEPRECIAÇÃO: Perda de valor de um bem, devido a modificações em seu estado ou qualidade, ocasionadas por decrepitude, deterioração, mutilação ou obsoletismo. A Instrução Normativa SRF 162/98 determina prazos de depreciação maquinas e equipamentos. De acordo com Decreto Federal 3000/1999 (RIR) em seus Artigos 311 e 346, para bens usados a taxa de depreciação será fixada tendo em vista o maior dos seguintes prazos: 1. Metade da vida útil admissível para o bem novo ou 2. Restante da vida útil, considerada em relação à primeira instalação. Exemplo: Equipamento Novo = 20 anos, portanto máxima vida útil para um equipamento usado será de 10 anos caso ele tenha mais de 10 anos de instalado. 6.2 MÉTODOS USUAIS PARA DEPRECIAÇÃO - MÉTODO DA LINHA RETA (MLR) Consiste em considerar a depreciação como função linear da idade do BEM, com variação uniforme ao longo da vida útil. É o método mais rápido e mais simples, além de ser permitido pela legislação do imposto de renda. - MÉTODO DA PARÁBOLA OU DE KUENTZLE É o método pelo qual a depreciação se distribui ao longo da vida útil do BEM, segundo as ordenadas de uma parábola, onde: - MÉTODO DE ROSS Este método tem emprego internacional generalizado. Consiste num meio termo entre dois processos anteriores e sua equação algébrica é dada por: Elaborado por: Analisado por: Professor : Marcelo Gandra Falcone Alessandra Aparecida Vieira Marcelo Gandra Falcone QUANDO IMPRESSO CONSIDERAR PIRATARIA - CÓPIA NÃO AUTORIZADA
  • 337.
    UNINOVE Rev. B Engenharia deAvaliações e Perícias Manutenção Predial e Avaliação de Máquinas e Equipamentos 16/07/2011 Folha 337/424 6.3 MÉTODO DE ROSS - HEIDECKE Até agora foi visto que somente entraram em consideração, como fatores de depreciação, a vida útil e a idade do bem que se estuda, isto é, com os métodos retro expostos, calcula-se a depreciação resultante de uso normal. Para tanto usualmente considera-se a seguinte tabela para o cálculo do valor residual de imóveis: Heidecke, introduziu o conceito de estado de conservação e aconselha as depreciações calculadas por quaisquer das fórmulas antes mencionadas em porcentagem, que ponderem o estado de manutenção e conservação, isto é, o critério de Heidecke representa castigos por má conservação e, considera como princípios básicos os seguintes: − a depreciação é perda de valor que não pode ser recuperada com gastos de manutenção; − as reparações podem apenas dilatar a durabilidade; − um bem regularmente conservado deprecia-se de modo regular, enquanto que um bem mal conservado deprecia-se mais rapidamente. Elaborado por: Analisado por: Professor : Marcelo Gandra Falcone Alessandra Aparecida Vieira Marcelo Gandra Falcone QUANDO IMPRESSO CONSIDERAR PIRATARIA - CÓPIA NÃO AUTORIZADA
  • 338.
    UNINOVE Rev. B Engenharia deAvaliações e Perícias Manutenção Predial e Avaliação de Máquinas e Equipamentos 16/07/2011 Folha 338/424 Tabela de Ross-Heidecke : Combina o estado de conservação do Bem com a idade em percentual da vida útil provável, onde K encontra-se na tabela apresentada abaixo Elaborado por: Analisado por: Professor : Marcelo Gandra Falcone Alessandra Aparecida Vieira Marcelo Gandra Falcone QUANDO IMPRESSO CONSIDERAR PIRATARIA - CÓPIA NÃO AUTORIZADA
  • 339.
    UNINOVE Rev. B Engenharia deAvaliações e Perícias Manutenção Predial e Avaliação de Máquinas e Equipamentos 16/07/2011 Folha 339/424 Exemplo: Uma maquina com previsão de vida útil igual a 60 anos, está com 18 anos de uso e em estado regular de conservação e manutenção. Considerando o valor unitário de uma máquina idêntica nova é igual a R$ 6.000.000,00 , calcular seu valor depreciado devido a idade e conservação. Idade em % de vida útil => Buscando na tabela de depreciação na página anterior da apostila, tem-se: Estado c (regular) e 30% de idade em % de vida útil K = 21,5 Valor Unitário Depreciado = R$ 6.000.000,00 x 0,785 = R$ 4.710.000,00 Elaborado por: Analisado por: Professor : Marcelo Gandra Falcone Alessandra Aparecida Vieira Marcelo Gandra Falcone QUANDO IMPRESSO CONSIDERAR PIRATARIA - CÓPIA NÃO AUTORIZADA
  • 340.
    UNINOVE Engenharia de Avaliaçõese Perícias Manutenção Predial e Avaliação de Máquinas e Equipamentos 7. METODOLOGIAS EQUIPAMENTOS Rev. B 16/07/2011 PARA AVALIAÇÃO DE Folha 340/424 MÁQUINAS E A avaliação de bens de produção em geral, representados seja por máquinas, veículos, equipamentos, instalações industriais são atividades complexas. A complexidade no campo da avaliação e valoração industrial, como tal compreendida a valoração de uma simples máquina operatriz, até a avaliação e valoração de uma usina siderúrgica, exige por parte do avaliador uma soma de conhecimentos profissionais. A valoração e avaliação de uma máquina, de uma instalação industrial ou de uma indústria integrada ou não, não deve ser considerada como a simples somatória de valores atribuídos aos componentes físicos ou tangíveis, mas sim essa mesma somatória acrescida ou diminuída de valores correspondentes à parte intangível representada por marcas e patentes, tecnologia atualizada ou obsoleta e superada, e neste caso isto se constituirá num fator negativo ou depreciativo. 7.1 ETAPAS DA AVALIAÇÃO 1° - Identificação dos bens ou coisas a serem avaliados. 2º - Levantamento de campo, onde devem ser conferidos os dados obtidos nos levantamentos preliminares de operação e produção. Deve ser verificado o estado de conservação e manutenção, bem como o estado operacional. Um relatório ilustrado com fotografias torna-se muito mais útil, eis que permite a qualquer momento, e em qualquer lugar, visualizar detalhes que ás vezes já não existem mais ou que foram modificados após a avaliação. A tabela abaixo ajuda na coleta de dados para especificação: Elaborado por: Analisado por: Professor : Marcelo Gandra Falcone Alessandra Aparecida Vieira Marcelo Gandra Falcone QUANDO IMPRESSO CONSIDERAR PIRATARIA - CÓPIA NÃO AUTORIZADA
  • 341.
    UNINOVE Rev. B Engenharia deAvaliações e Perícias Manutenção Predial e Avaliação de Máquinas e Equipamentos 16/07/2011 Folha 341/424 3º Coleta de informações Para se estabelecer o valor de uma coisa ou bem, é necessário haver uma base para, a partir da mesma, seja por comparação, extrapolação, dedução ou outro método, se chegar ao valor do mesmo. Para a valoração de máquinas, equipamentos, instalações industriais, é esse o procedimento a adotar. O valor procurado, tal como anteriormente definido, deve assentar em bases realistas, comprováveis, pois em última análise, o avaliador responde pelas opiniões e pareceres emitidos, devendo estar em condições de poder a qualquer momento, demonstrar o acerto de seus cálculos. Para tanto, o pesquisador deve proceder a uma pesquisa de valores atualizados para os bens avaliandos. As fontes de informações são as mais variadas e diversificadas sendo comumente as seguintes: Fabricantes; Representantes; Distribuidores; Agentes autorizados; Revendedores; Comércio de novos e usados. Quanto a equipamentos e instalações de fabricação especial sob encomenda, tais como reatores, colunas de destilação, permutadores de calor, tanques, máquinas especiais, etc., o procedimento será o de orçar os materiais e a mão de obra utilizados em todas as etapas de fabricação dos mesmos, incluindo os impostos devidos. 7.2 CRITÉRIOS DE DEPRECIAÇÃO A princípio, todos os bens possuem durabilidade limitada. Sua melhor utilização ou eficácia ocorre enquanto novos, e, com a utilização, vão gradualmente perdendo características materiais, seja por desgaste, seja por decadência física dos seus componentes, até chegar ao ponto da utilização ser inviável economicamente. Este período denominamos de vida útil e é quantificado usualmente em anos. No tocante à importância da depreciação, a Legislação Brasileira (Lei 9.249/95 – art. 13) prevê que as empresas podem deduzir para efeito de determinação do lucro real e da base de cálculo da Contribuição Social sobre o lucro líquido, as despesas de depreciação e amortização de bens móveis ou imóveis, desde que estejam intrinsecamente relacionados com a produção ou comercialização dos bens e serviços. Os planejadores econômicos necessitam conhecer informações relativas à vida útil provável do maquinário industrial, instrumentos, equipamentos, instalações e edificações, para determinar e dimensionar o projeto de produção e a Elaborado por: Analisado por: Professor : Marcelo Gandra Falcone Alessandra Aparecida Vieira Marcelo Gandra Falcone QUANDO IMPRESSO CONSIDERAR PIRATARIA - CÓPIA NÃO AUTORIZADA
  • 342.
    UNINOVE Rev. B Engenharia deAvaliações e Perícias Manutenção Predial e Avaliação de Máquinas e Equipamentos 16/07/2011 Folha 342/424 viabilidade econômica da planta industrial. Percebe-se a importância do conhecimento a priori do comportamento provável da depreciação do capital físico de produção no tempo. Nos contratos de risco que as empresas seguradoras oferecem ao mercado, em geral estão previstas indenizações limitadas ao valor dos bens à época do sinistro. No caso dos automóveis, a importância segurada em geral está limitada ao valor dos mesmos no momento da contratação do risco, portanto, limitado ao valor, já considerando a depreciação dos mesmos, em comparação com automóveis novos. As máquinas e equipamentos individualmente se depreciam devido a degradação física e ao obsoletismo o que na verdade, reflete a tendência do mercado (nítida diferença entre um bem novo e usado). Quando se analisa um processo em marcha a depreciação do ativo não é tão clara, e somente através de uma avaliação econômica pode-se chegar ao valor real do empreendimento. Convém lembrar que o valor das máquinas e equipamentos são justificados em função do lucro gerado, o que está intimamente relacionado com a administração do empreendimento. Relativamente aos bens materiais que pertencem ao processo, e partindo do pressuposto que o projeto é adequado à finalidade, o principal condicionante da maior ou menor depreciação é a gestão da manutenção, que além de assegurar a disponibilidade de máquinas, equipamentos e instalações nos níveis exigidos pelo mercado, garante o grau de confiabilidade individual do bem. Diversos critérios de depreciação já foram apresentados no caso de imóveis, os quais também podem ser utilizados para máquinas e equipamentos, dependendo do caso. Há outros métodos consagrados como o desenvolvido pelo Eng. Hélio Roberto de Caires em seu livro Novos Tratamentos Matemáticos em Temas de Engenharia de Avaliação. O seu método leva em consideração além da vida útil e do tempo de operação, um coeficiente de manutenção e um coeficiente de trabalho. Outro método é o da Criticidade (Eng° Luis Barbosa) que leva em conta os custos despendidos em manutenção dos equipamentos. Todos os métodos de depreciação acima apresentados baseiam-se na vida útil dos elementos. Um balizador para estes valores pode ser obtido junto aos fabricantes, ou em livros especializados. Para elementos que ultrapassaram a vida útil projetada, porém ainda se encontram em utilização, convenciona-se um fator de penalização do valor residual. Elaborado por: Analisado por: Professor : Marcelo Gandra Falcone Alessandra Aparecida Vieira Marcelo Gandra Falcone QUANDO IMPRESSO CONSIDERAR PIRATARIA - CÓPIA NÃO AUTORIZADA
  • 343.
    UNINOVE Rev. B Engenharia deAvaliações e Perícias Manutenção Predial e Avaliação de Máquinas e Equipamentos 16/07/2011 Folha 343/424 7.2 AVALIAÇÃO PELO MÉTODO COMPARATIVO DE MERCADO O método comparativo, sendo de conhecimento geral, é a viga mestra das avaliações de bens. Detalhar sua metodologia fugiria aos objetivos imediatos deste curso. Nestas condições a título de melhor aproveitamento didático, vamos apresentar uma seqüência prática e objetiva de procedimentos, os quais orientam a formação de uma amostra que permita a avaliação coerente de uma ou mais unidades de máquinas, veículos, tratores, etc, cujo mercado seja definido. No exemplo a seguir, pretende-se apresentar uma maneira de adoção de variáveis e a forma de trabalho. Para efeito de comparação de amostras deste caso estamos utilizando coeficientes lineares de equivalência. EXEMPLO ILUSTRATIVO 1 Elaborado por: Analisado por: Professor : Marcelo Gandra Falcone Alessandra Aparecida Vieira Marcelo Gandra Falcone QUANDO IMPRESSO CONSIDERAR PIRATARIA - CÓPIA NÃO AUTORIZADA
  • 344.
    UNINOVE Rev. B Engenharia deAvaliações e Perícias Manutenção Predial e Avaliação de Máquinas e Equipamentos 16/07/2011 Folha 344/424 EXEMPLO ILUSTRATIVO 2 Supondo que deva ser avaliado um caminhão de transporte rodoviário da marca "Estrela", com carroceria de madeira, ano 1996, modelo E1316. 1º Passo: Fatores de Relevância Devem ser estabelecidos quais são os fatores de relevância a serem ponderados, com os repetíveis níveis percentuais de valor relativo. Este percentual corresponderá a pesos e tem correlação de coerência entre o estado físico e os valores propostos ou os praticados no mercado. Neste exemplo hipotético foram estabelecidos os seguintes níveis percentuais para os componentes listados na tabela seguinte: 2º Passo: Coleta de Dados Devem ser coletados os dados junto ao mercado (pesquisa de mercado atualizada) para posterior formação da amostra. Deve ser preenchida uma planilha que auxiliará na apropriação dos dados. Para cada dado de pesquisa deverá ser preenchida uma planilha. Elaborado por: Analisado por: Professor : Marcelo Gandra Falcone Alessandra Aparecida Vieira Marcelo Gandra Falcone QUANDO IMPRESSO CONSIDERAR PIRATARIA - CÓPIA NÃO AUTORIZADA
  • 345.
    UNINOVE Rev. B Engenharia deAvaliações e Perícias Manutenção Predial e Avaliação de Máquinas e Equipamentos 16/07/2011 Folha 345/424 Elaborado por: Analisado por: Professor : Marcelo Gandra Falcone Alessandra Aparecida Vieira Marcelo Gandra Falcone QUANDO IMPRESSO CONSIDERAR PIRATARIA - CÓPIA NÃO AUTORIZADA
  • 346.
    UNINOVE Rev. B Engenharia deAvaliações e Perícias Manutenção Predial e Avaliação de Máquinas e Equipamentos 16/07/2011 Folha 346/424 Elaborado por: Analisado por: Professor : Marcelo Gandra Falcone Alessandra Aparecida Vieira Marcelo Gandra Falcone QUANDO IMPRESSO CONSIDERAR PIRATARIA - CÓPIA NÃO AUTORIZADA
  • 347.
    UNINOVE Rev. B Engenharia deAvaliações e Perícias Manutenção Predial e Avaliação de Máquinas e Equipamentos 16/07/2011 Folha 347/424 EXEMPLO ILUSTRATIVO 3 Neste exemplo, procurou-se demonstrar a capacidade de aplicação do método, através da hipótese de similaridade da amostra. Partiu-se de um compressor e através de ofertas anunciadas de compressores da mesma marca e do preço referente a equipamentos novos com especificações semelhantes (visto que as ofertas anunciadas correspondem a modelos não mais fabricados), construiuse um modelo de regressão. Os dados se referem a fevereiro de 2006. Objeto avaliando: Compressor de ar estacionário ATLAS-COPCO, modelo GA 22-100 com capacidade de 123 m3/h a 7,5 bar de pressão de saída, ano de fabricação 1995. (11 ANOS) Valor de novo: R$ 27.000,00 É importante que o valor de x do objeto avaliando esteja contido no intervalo da amostra, para não se incorrer em extrapolação, ao invés de interpolação. Um motivo pelo qual que isto não deva feito, é o fato de que o valor de um elemento que esteja fora do intervalo da amostra pode mudar o formato da curva de depreciação, tornando o resultado obtido não confiável. Caso a marca e o modelo do equipamento coincidam, isto é, os objetos só diferem pelo ano de fabricação, não se faz necessário obter o valor de D. Em seu lugar, é utilizado o valor da oferta de mercado, ou seja, obter-se-á um gráfico de VA em função de x, diretamente como no exemplo 2. Elaborado por: Analisado por: Professor : Marcelo Gandra Falcone Alessandra Aparecida Vieira Marcelo Gandra Falcone QUANDO IMPRESSO CONSIDERAR PIRATARIA - CÓPIA NÃO AUTORIZADA
  • 348.
    UNINOVE Rev. B Engenharia deAvaliações e Perícias Manutenção Predial e Avaliação de Máquinas e Equipamentos 16/07/2011 Depreciação x tempo Folha 348/424 y = -0,1653Ln(x) + 0,7351 2 R = 0,9386 Depreciação 0,8 0,7 0,6 0,5 0,4 Log. Linear 0,3 0,2 0,1 0 1 4 7 10 13 16 19 22 25 28 31 34 37 40 anos y = -0,0119x + 0,5439 2 R = 0,6647 Figura 2 – Curva de regressão para os compressores dados (calculada no excel) Após a aplicação do modelo de regressão foi obtida a seguinte equação: D = y = -0,1653Ln(x) + 0,7351 com R² = 0,9386, o que implica em: D (11) = 0,419 e VA= 0,419 x 27000 = R$ 11.313,00. Ao se concentrar a atenção no ponto correspondente ao compressor modelo XA80 DE 18 ANOS (1988) é um ponto fora da curva e provocou uma diminuição excessiva no valor de D, ou seja, este valor é menor do que deveria ser. Para que este problema seja contornado, pode ser verificado o preço do compressor novo correlato imediatamente abaixo na escala de capacidade, dando assim condições de se estabelecer uma relação de proporcionalidade entre os compressores novos de modo a corrigir esta distorção. Elaborado por: Analisado por: Professor : Marcelo Gandra Falcone Alessandra Aparecida Vieira Marcelo Gandra Falcone QUANDO IMPRESSO CONSIDERAR PIRATARIA - CÓPIA NÃO AUTORIZADA
  • 349.
    UNINOVE Rev. B Engenharia deAvaliações e Perícias Manutenção Predial e Avaliação de Máquinas e Equipamentos 16/07/2011 7.3 AVALIAÇÃO PELO MÉTODO COMPARATIVO DE CONSIDERANDO-SE O ESTADO FÍSICO (CONSERVAÇÃO) Folha 349/424 MERCADO Um pressuposto que foi feito pelo modelo é de que a amostra seja similar ao objeto avaliando de modo que o resultado seja um valor de avaliação mais fidedigno. No entanto, o procedimento de restringir elementos da amostra pode vir a esgotar os dados disponíveis, pois tais elementos possuem diferentes estados de conservação, ou seja, na prática eles são heterogêneos entre si. O que deve ser averiguado é se essa diferença é desprezível ou não. Caso seja considerável ou se queira um melhor nível de precisão, o modelo pode ser conjugado com o método Hélio de Caíres através da função que considera fatores de manutenção e de trabalho, de sorte que a amostra seja mais bem aproveitada. Aplica-se assim o método para o segundo caso com valores de coeficientes de manutenção e trabalho arbitrados com referência nos dados que se possuía sobre cada elemento da amostra. Com relação ao uso dos coeficientes de manutenção e de trabalho, o grande problema é o de se fixar uma referência. Entretanto a importância daqueles no modelo é apenas relativa dado que todos os elementos (os da amostra e o avaliando) passarão por esse processo de correção e para que isso ocorra da melhor forma possível, às vezes é necessário que se tenha um maior grau de liberdade na atribuição dos valores de CM e CT. Elaborado por: Analisado por: Professor : Marcelo Gandra Falcone Alessandra Aparecida Vieira Marcelo Gandra Falcone QUANDO IMPRESSO CONSIDERAR PIRATARIA - CÓPIA NÃO AUTORIZADA
  • 350.
    UNINOVE Rev. B Engenharia deAvaliações e Perícias Manutenção Predial e Avaliação de Máquinas e Equipamentos 16/07/2011 Folha 350/424 Elaborado por: Analisado por: Professor : Marcelo Gandra Falcone Alessandra Aparecida Vieira Marcelo Gandra Falcone QUANDO IMPRESSO CONSIDERAR PIRATARIA - CÓPIA NÃO AUTORIZADA
  • 351.
    UNINOVE Rev. B Engenharia deAvaliações e Perícias Manutenção Predial e Avaliação de Máquinas e Equipamentos 16/07/2011 Folha 351/424 EXEMPLO ILUSTRATIVO 4 Neste exemplo estamos aproveitando a pesquisa do exemplo 3. Reiterando os dados se referem a fevereiro de 2006. Objeto avaliando: Compressor de ar estacionário ATLAS-COPCO, modelo GA 22-100 com capacidade de 123 m3/h a 7,5 bar de pressão de saída, ano de fabricação 1995. (11 ANOS) Valor de novo: R$ 27.000,00 Elaborado por: Analisado por: Professor : Marcelo Gandra Falcone Alessandra Aparecida Vieira Marcelo Gandra Falcone QUANDO IMPRESSO CONSIDERAR PIRATARIA - CÓPIA NÃO AUTORIZADA
  • 352.
    UNINOVE Rev. B Engenharia deAvaliações e Perícias Manutenção Predial e Avaliação de Máquinas e Equipamentos 16/07/2011 Folha 352/424 Aqui, os coeficientes foram aplicados de acordo com a descrição de cada compressor obtida na pesquisa e, nos casos em que foi possível, com as fotos disponíveis. Para objeto de avaliação foram considerados normais os coeficientes de trabalho e manutenção. É certo que este é um fator muito influente na qualidade do resultado, sendo assim, melhor será que se obtenha o máximo de informações possíveis a respeito de cada elemento. Após a aplicação o modelo de regressão, obtem-se a seguinte equação: D = 0,865-0,195*ln(x) com R² = 0,906, o que implica que: D (11) = 0,397 e VA = 0,397 x 27000 = R$ 10.719,00. Obs: No exemplo 3 sem o ajuste CM/CT os valores foram : D (11) = 0,419 e VA= 0,419 x 27000 = R$ 11.313,00. Dessa forma, chegou-se ao valor de avaliação através da equação obtida com o modelo de regressão, ajustando-se a idade dos bens pelo método Hélio de Caires. A diferença entre o valor ajustado e o valor sem ajuste foi de aproximadamente 5% para mais em favor do valor sem ajuste. Tal diferença tende a cair à medida que se aumenta o número de elementos e a homogeneidade da amostra. Utilizando-se o método Hélio de Caires, através do seguinte procedimento: Da tabela 3, aplicam-se coeficientes de manutenção e trabalho normais o que pela tabela 4, resulta num valor de f(CM,CT) = 1,00. Em seguida, multiplica-se f(CM,CT) por t/T, o que resultado em 0,73 ( para t=11 e vida útil de 15 anos) e 0,55 (para t=11 e vida útil de 20 anos), o que através da tabela 5, implica em: 0,23454 < Dc < 0,38598. Se for considerado um valor residual de 10 % o parâmetro fica: D = 0,1 + 0,9 (Dc) o que implica em 0,311086 < Dc<0,447382 e R$ 8.399,00 < VA < R$ 12.079,00. O que representa uma diferença de 44 %. Elaborado por: Analisado por: Professor : Marcelo Gandra Falcone Alessandra Aparecida Vieira Marcelo Gandra Falcone QUANDO IMPRESSO CONSIDERAR PIRATARIA - CÓPIA NÃO AUTORIZADA
  • 353.
    UNINOVE Rev. B Engenharia deAvaliações e Perícias Manutenção Predial e Avaliação de Máquinas e Equipamentos 16/07/2011 Folha 353/424 7.4 AVALIAÇÃO PELO MÉTODO DO CUSTO DE REEDIÇÃO Quando não há elementos de comparação no mercado sugere-se a determinação do valor de novo da máquina ou equipamento e em seguida utiliza-se a depreciação através do método de Ross Heidecke. O custo de reedição pode ser sintetizado como sendo a somatória do preço de aquisição da máquina ou equipamento com todas as implicações de impostos e taxas, custos de transporte até o local da obra, com o custo dos materiais para instalação, respectiva mão de obra, inclusive naquilo a que se refere a acabamentos especiais ou normais, tais como pintura, isolação térmica, etc. Exemplo EQUIPAMENTO: Regulador de tensão, 530 kVA, tipo ERT1-10L, nº 12.223. Fabricação Equacional. Prezados Senhores, Em atenção a solicitação de V.Sas., apresentamos abaixo alguns comentários bem como a declaração de prolongamento da vida útil do bem em referencia. 1) Pela Instrução Normativa SRF 162/98 o prazo de depreciação para este tipo de bem novo é de 10 anos. 2) Pela tabela de vida útil do IBAPE, Equipamentos Elétricos, Conversor, a Vida Útil estimada é de 25 anos até a total obsolescência. 3) Valor do novo: R$ 150.000,00. Data do fornecimento original: Dez/1995. Tempo de uso 15 anos. 4) Valor do reparo: R$ 26.700,00. Data do reparo: Ago/2010 5) Por tratar-se de equipamento especial sob encomenda, não há elementos de comparação no mercado, portanto estamos sugerindo a determinação do valor de novo da máquina ou equipamento e em seguida utilizando-se a depreciação através do método de Ross Heidecke. Idade em % de vida útil => 18/25=0,72 -> 72% Buscando na tabela de depreciação na página 340 da apostila, tem-se: Estado B (Novo/Regular -> Acabou de ser reformado) e 72% de idade em % de vida útil K = 61,9 Valor Unitário Depreciado = R$ 150.000,00 x 0,619 = R$ 92.850,00 Elaborado por: Analisado por: Professor : Marcelo Gandra Falcone Alessandra Aparecida Vieira Marcelo Gandra Falcone QUANDO IMPRESSO CONSIDERAR PIRATARIA - CÓPIA NÃO AUTORIZADA
  • 354.
    UNINOVE Rev. B Engenharia deAvaliações e Perícias Manutenção Predial e Avaliação de Máquinas e Equipamentos 16/07/2011 Folha 354/424 6) De acordo com Decreto Federal 3000/1999 (RIR) em seus Artigos 311 e 346, para bens usados a taxa de depreciação será fixada tendo em vista o maior dos seguintes prazos: 1. Metade da vida útil admissível para o bem novo ou (5 anos) 2. Restante da vida útil, considerada em relação à primeira instalação. (5 Anos) De posse de tais informações e levando em consideração a interferência de reforma (manutenção corretiva) do equipamento dentro de parâmetros previstos em projeto: “Declaramos para os devidos fins que após a realização dos serviços descritos em nossa proposta DVS-13.863/10, aprovados através do Pedido de Compra 65.839, o equipamento em referencia tem seu valor atribuído em R$ 92.500,00 levando em consideração custos indiretos de impostos, transporte e instalação e terá sua vida útil prolongada por até mais 5 anos.” Elaborado por: Analisado por: Professor : Marcelo Gandra Falcone Alessandra Aparecida Vieira Marcelo Gandra Falcone QUANDO IMPRESSO CONSIDERAR PIRATARIA - CÓPIA NÃO AUTORIZADA
  • 355.
    UNINOVE Rev. B Engenharia deAvaliações e Perícias Manutenção Predial e Avaliação de Máquinas e Equipamentos 16/07/2011 Folha 355/424 8. AUTOS DE AVALIAÇÃO 8.1 AUTO OU LAUDO? CONCEITUAÇÃO E CARACTERÍSTICAS Conforme visto no item 1, laudo é o resultado técnico de uma avaliação, onde são apresentados todos os elementos esclarecedores e as suas conclusões, emitido por um profissional capacitado e legalmente habilitado sobre assunto de sua especialidade. Auto de avaliação pode ser definido como um relatório circunstanciado opinativo de valor de um bem. 8.2 MODELO DE AUTO DE AVALIAÇÃO Tomamos a liberdade de apresentar o presente modelo, elaborado por Antonio Marcos Pacheco – assojepar@onda.com.br. , retirado da apostila anexa. Elaborado por: Analisado por: Professor : Marcelo Gandra Falcone Alessandra Aparecida Vieira Marcelo Gandra Falcone QUANDO IMPRESSO CONSIDERAR PIRATARIA - CÓPIA NÃO AUTORIZADA
  • 356.
    UNINOVE Rev. B Engenharia deAvaliações e Perícias Manutenção Predial e Avaliação de Máquinas e Equipamentos 16/07/2011 Folha 356/424 8.3 REQUISITOS ESSENCIAIS DO AUTO DE AVALIAÇÃO Ter como referência os itens 7.1 da Segunda parte da apostila. 8.4 REQUISITOS ACESSÓRIOS DO AUTO DE AVALIAÇÃO Ter como referência os itens 7.1 da Segunda parte da apostila. 8.5 ANEXAÇÃO FOTOGRÁFICA Ter como referência os itens7.1 da Segunda parte da apostila.. 8.6 NOÇÕES GERAIS DE CONTRA-RAZÕES DAS IMPUGNAÇÕES AOS AUTOS DE AVALIAÇÃO Impugnações são freqüentes e de todas as espécies. Ao avaliador resta a defesa de seu trabalho. A melhor forma é fundamentar e comprovar todos os dados e cálculos apresentados, conforme o roteiro indicado para laudos no item 3 da presente apostila. Lembrar o Princípio da Transparência: O laudo ou parecer avaliatório de um bem deve conter a informação necessária e suficiente para sua fácil compreensão e detalhar as hipóteses e documentações utilizadas. Elaborado por: Analisado por: Professor : Marcelo Gandra Falcone Alessandra Aparecida Vieira Marcelo Gandra Falcone QUANDO IMPRESSO CONSIDERAR PIRATARIA - CÓPIA NÃO AUTORIZADA
  • 357.
    UNINOVE Rev. B Engenharia deAvaliações e Perícias Manutenção Predial e Avaliação de Máquinas e Equipamentos 16/07/2011 Folha 357/424 Referências bibliográficas Na elaboração da presente apostila foram utilizados e copiados textos, gráficos e conceitos dos seguintes livros, apostilas e publicações: MANUAL DO CURSO INTRODUTÓRIO NOÇÕES BÁSICAS DE AVALIAÇÃO DE BENS, PEDRO AUGUSTO KRUK, KRUK Consultoria, Avaliações e Perícias do Patrimônio Ltda, Curitiba Paraná, 2.007 NORMAS BRASILEIRAS DE AVALIAÇÃO DA ABNT INSTRUÇÕES TECNICAS DO CORPO DE BOMBEIROS DA POLICIA MILITAR DO ESTADO DE SÃO PAULO PORTARIA 124 DO MINISTÉRIO DE ESPORTES NORMA DE AVALIAÇÃO DE BENS DO IBAPE SP - PROCEDIMENTOS GERAIS:2005 NORMA DE INSPEÇÔES PREDIAIS PUBLICAÇÃO IBAPE SP – AVALIAÇÃO O QUE É E COMO CONTRATAR: 2007 CADERNO BRASILEIRO DE AVALIAÇÕES E PERÍCIAS. DIVERSOS AUTORES. AVALIEN EDITORA IBAPE: AVALIAÇÕES PARA GARANTIAS. EDITORA PINI. EQUIPE ATLAS, “MANUAIS DE LEGISLAÇÃO, SEGURANÇA E MEDICINA DO TRABALHO”. Edit. Atlas, 62ª Edição, São Paulo, 2008, NR7, NR9, NR10, NR13, NR17, NR 20, NR23 BRAGA JR, Antonio Erlindo, “DISSERTAÇÃO DE MESTRADO: FERRAMENTAS PARA O PROJETO ERGONÔMICO DE PRODUTOS : ANÁLISE E SELEÇÃO PARA O USO”, Universidade Federal de Santa Catarina, Florianópolis, Março de 1996, Santa Catarina, Brasil, CAPITULO II. URL: http://www.eps.ufsc.br/disserta96/erlindo/indice/index.htm em 08/11/2008 BUSSAB, W. O.; MORENTTIN, P. A.: ESTATÍSTICA BÁSICA. ATUAL EDITORA. COPESCO JR, Ari Vladimir, Artigo, “AS EMPRESAS NÃO ACORDARAM PARA O PROBLEMA DE ERGONOMIA”, discutido no Seminário sobre Segurança do Trabalho, que foi realizado pelo Ceise Br – Centro Nacional das Indústrias do Setor Sucroalcooleiro, em parceria com a Wiabiliza Recursos Humanos em 04/06/2008. URL: http://www.ceiseciesp.com.br/noticias.php?id=1163 em 21/10/2008. Elaborado por: Analisado por: Professor : Marcelo Gandra Falcone Alessandra Aparecida Vieira Marcelo Gandra Falcone QUANDO IMPRESSO CONSIDERAR PIRATARIA - CÓPIA NÃO AUTORIZADA
  • 358.
    UNINOVE Rev. B Engenharia deAvaliações e Perícias Manutenção Predial e Avaliação de Máquinas e Equipamentos 16/07/2011 Folha 358/424 SANTOS, Carlos Maurício Duque dos, Artigo “Ergonomia, Qualidade e Segurança do Trabalho: Estratégia Competitiva para Produtividade da Empresa”, Prof. M.Sc. Carlos Maurício Duque dos Santos , UNIPUniversidade Paulista, 2003 COUTO, Hudson de Araújo. In Ergonomia Aplicada ao Trabalho - A máquina humana. Volume I, l998. GONÇALVES, Edwar Abreu. Manual de Segurança e Saúde no Trabalho. Edit. LTR 2000. PERITO, Sandra, Apostila, “Aplicando o conceito do universal design”, Instituto Brasil Acessível, agosto de 2006 BURJATO, Ana Lúcia de Faria, Apostila “Engenharia e Segurança do Trabalho Ergonomia – ano 2008” - UNINOVE – Curso de Engenharia de Segurança do trabalho; Disciplina Ergonomia. Arqta. Ms. Ana Lúcia de Faria BurjatoSP , ano 2008 SILVA, FERNANDES, VARANDAS E CUETO, André Hemetério da Silva, Alan Cortez de Lucena, Daniela Massano Fernandes, Glaucia Varandas, Maria Izabel Artidiello Cueto, Apostila “ACESSIBILIDADE - MOBILIDADE ACESSÍVEL NA CIDADE DE SÃO PAULO”, Publicação da Secretaria Municipal da Pessoa com Deficiência e Mobilidade Reduzida (SMPED), São Paulo, Sp, 2008. DOWNLOAD GRATUITO NO SITE DA PREFEITURA DE SP SPIEGEL, M. R.: ESTATÍSTICA. EDITORA SCHAUM MCGRAW-HILL. TOURINHO, L. C. P.: CADERNOS DE ESTATÍSTICA E ECONOMIA. NÚMERO 1. PROBABILIDADES. EDITORA DAEP. WONNACOTT, T. H.; WONNACOTT, R. J.: ESTATÍSTICA APLICADA À ECONOMIA E ADMINISTRAÇÃO. LIVROS TÉCNICOS E CIENTÍFICOS EDITORA S.A. TÉCNICOS DE CONTRU-2, Manual “ORIENTAÇÃO TÉCNICA INFORMAÇÃO E DOCUMENTAÇÃO”; Prefeitura da Cidade de São Paulo, Secretaria de Habitação , Departamento de Controle de Uso de Edificações (Contru), janeiro de 2008 SITE Núcleo de Ergonomia e Antropometria - NEA. Missão. Definições. Serviços. URL: http://www.cspd.com.br/nucleos.asp?act=listar&id_nucleo=3, Dia 21/10/08 Elaborado por: Analisado por: Professor : Marcelo Gandra Falcone Alessandra Aparecida Vieira Marcelo Gandra Falcone QUANDO IMPRESSO CONSIDERAR PIRATARIA - CÓPIA NÃO AUTORIZADA
  • 359.
    UNINOVE Rev. B Engenharia deAvaliações e Perícias Manutenção Predial e Avaliação de Máquinas e Equipamentos 16/07/2011 Folha 359/424 SITE: CLT - CONSOLIDAÇÃO DAS LEIS DO TRABALHO - DECRETO-LEI Nº 5.452, DE 1º DE MAIO DE 1943 URL: https://www.planalto.gov.br/ccivil_03/decreto-lei/Del5452.htm em 11/10/2008 SITE: FEMA: Federal Emergency Management Agency (USA); URL: http://www.fema.gov/ “Guidelines for availabiliy of outdoor toilet facilities” – American Restroom Association; URL:http://americanrestroom.org/pr/policy/ SITE: Normas e Legislação: Secretaria Municipal da Pessoa com Deficiência e Mobilidade Reduzida - .SP / secretarias / smped / acessibilidade URL:http://portal.prefeitura.sp.gov.br/secretarias/deficiencia_mobilidade_reduzi da/acessibilidade/0001 em 07/11/2008 SITE: Normas Oficiais ABNT; URL:http://www.abntnet.com.br/ SITE: Diário oficial do Município – Cidade de São Paulo URL:http://diariooficial.imprensaoficial.com.br/nav_v4/index.asp?c=1, em 16/11/2008 SITE: Sesmet: Segurança do Trabalho – Yahoo; URL:http://br.groups.yahoo.com./group/sesmet SITE: Grupo espaço Sesmet; URL:http:// www.segurancatrabalho.eng.br SITE: Forum Grupo CIPA;URL: http://www.cipanet.com.br/forum SITE: Notas de aula do curso de engenharia produção da Universidade Federal de Juiz de Fora – Profº Eduardo Breviglieri Pereira de Castro: www.ep.ufjf.br/epd_ergonomia/desenho_universal.pdf SITE: The center for universal design: http://www.design.ncsu.edu/cud/ Elaborado por: Analisado por: Professor : Marcelo Gandra Falcone Alessandra Aparecida Vieira Marcelo Gandra Falcone QUANDO IMPRESSO CONSIDERAR PIRATARIA - CÓPIA NÃO AUTORIZADA
  • 360.
    UNINOVE Rev. B Engenharia deAvaliações e Perícias Manutenção Predial e Avaliação de Máquinas e Equipamentos 16/07/2011 Folha 360/424 Apêndice 1 - LEGISLAÇÃO PERTINENTE 1 – Código de Obras e Edificações 1.1 – Lei 11.228 de 26 de Junho de 1992. Dispõe sobre as regras gerais e específicas a serem obedecidas no projeto, licenciamento, execução, manutenção e utilização de obras e edificações, dentro dos limites dos imóveis; revoga a Lei nº 8.266, de 20 de junho de 1975, com as alterações adotadas por leis posteriores, e dá outras providências. 1.2 – Decreto Nº 32.329 de 23 de Setembro de 1992. Regulamenta a Lei nº 11.228, de 25 de junho de 1992 - Código de Obras e Edificações, e dá outras providências. 2 – Decretos que instituíram o Alvará de Funcionamento de local de Reunião, Termo de Consulta e Revalidação do Alvará de Funcionamento do Local de Reunião 2.1 – Decreto n° 24.636, de 24 de Setembro de 1987. Altera e complementa dispositivos do Decreto nº 15.636/79 e revoga o Decreto n° 15.861/79. 2.2 – Decreto n° 41.531, de 20 de Dezembro de 2001. Dispõe sobre o uso equivalente dos imóveis. 2.3 – Decreto n° 41.532, de 20 de Dezembro de 2001. Dispõe sobre o Termo de Consulta, Auto de Licença de Funcionamento e do Alvará de Funcionamento. 2.4 – Decreto n° 41.534, 20 de Dezembro de 2001. Dispõe sobre a fiscalização em geral, estabelece os procedimentos de fiscalização da instalação e do funcionamento de atividades em imóveis . 2.5 - Decreto nº 49.969/08, 28 de Agosto de 2008 Regulamenta a expedição de Auto de Licença de Funcionamento, Alvará de Funcionamento, Alvará de Autorização para Eventos Públicos e Temporários e Termo de Consulta de Funcionamento, em consonância com as Leis nº 10.205, de 4 de dezembro de 1986, e nº 13.885, de 25 de agosto de 2004; revoga os Decretos e a portaria que especifica: Decreto nº 15.636, de 18 de janeiro de 1979, Decreto nº 24.636, de 24 de setembro de 1987, Decreto nº 32.543, de 3 de novembro de 1992, Decreto nº 34.571, de 11 de outubro de 1994, Decreto nº 41.361, de 13 de novembro de 2001, e Decreto nº 41.532, de 20 de dezembro de 2001, o § 1º do artigo 12 do Decreto nº 44.577, de 7 de abril de 2004, Decreto nº 49.669, de 24 de junho de 2008 e Portaria nº 395/03-Pref, de 19 de dezembro de 2003. Elaborado por: Analisado por: Professor : Marcelo Gandra Falcone Alessandra Aparecida Vieira Marcelo Gandra Falcone QUANDO IMPRESSO CONSIDERAR PIRATARIA - CÓPIA NÃO AUTORIZADA
  • 361.
    UNINOVE Rev. B Engenharia deAvaliações e Perícias Manutenção Predial e Avaliação de Máquinas e Equipamentos 16/07/2011 Folha 361/424 2.6 - Portaria 367/2001 – Dispõe sobre procedimentos nos pedidos de Alvará de Funcionamento de Locais de Reunião que dependam de decisão de processo de regularização 3 – Legislação Referente a Alvará de Autorização 3.1 - Portaria 395 / 03 – Alvará de Autorização de Eventos temporários revogado pelo Decreto 49.969/08; 4.3.2 – Portaria nº 1105, de 2007. Os locais, nos quais se pretenda realizar bailes e eventos carnavalescos ou similares, deverão possuir condições regulares de funcionamento para a obtenção da AUTORIZAÇÃO ESPECIAL. Revogada pelo Decreto 49.969/08; 4.3.3 - Decreto nº 49.969/08, 28 de Agosto de 2008 Regulamenta a expedição de Auto de Licença de Funcionamento, Alvará de Funcionamento, Alvará de Autorização para Eventos Públicos e Temporários e Termo de Consulta de Funcionamento, em consonância com as Leis nº 10.205, de 4 de dezembro de 1986, e nº 13.885, de 25 de agosto de 2004; revoga os Decretos e a portaria que especifica: Decreto nº 15.636, de 18 de janeiro de 1979, Decreto nº 24.636, de 24 de setembro de 1987, Decreto nº 32.543, de 3 de novembro de 1992, Decreto nº 34.571, de 11 de outubro de 1994, Decreto nº 41.361, de 13 de novembro de 2001, e Decreto nº 41.532, de 20 de dezembro de 2001, o § 1º do artigo 12 do Decreto nº 44.577, de 7 de abril de 2004, Decreto nº 49.669, de 24 de junho de 2008 e Portaria nº 395/03-Pref, de 19 de dezembro de 2003. 4.4 – Leis e Decretos Referentes á Regularização da Edificação e Anistia 4.4.1 - Lei nº 11.522 de 04 de Maio de 1994. DISPOE SOBRE A REGULARIZACAO DE EDIFICACOES E DA OUTRAS PROVIDENCIAS.(PL469/91) OBS:PARTES VETADAS DA LEI(INC.IX ART.3 E PAR.3 ART.7)-PUBLICACAO DOM 200794P.39; REPUBLICACAO PARTES VETADAS DA LEI-DOM 270794,P.36 4.4.2 - Lei nº 13098 de 14 de Dezembro de 2000 Altera o inciso ix,do art.3.; o paragrafo 3.,do art.7.; os artigos 10, 14 e 16; o paragrafo unico do art.15 e acrescenta o artigo 19 da Lei 11.522/94 4.4.3 – Lei n° 13.558, de 14 de Abril de 2003. (Projeto de Lei nº 692/01, do Executivo, aprovado na forma do Substitutivo do Legislativo) Dispõe sobre a regularização de edificações e dá outras providências. Elaborado por: Analisado por: Professor : Marcelo Gandra Falcone Alessandra Aparecida Vieira Marcelo Gandra Falcone QUANDO IMPRESSO CONSIDERAR PIRATARIA - CÓPIA NÃO AUTORIZADA
  • 362.
    UNINOVE Rev. B Engenharia deAvaliações e Perícias Manutenção Predial e Avaliação de Máquinas e Equipamentos 16/07/2011 Folha 362/424 4.4.4 – Lei n° 13.876, de 23 de Julho de 2004. Altera disposições da Lei nº 13.558, de 14 de abril de 2003, que dispõe sobre a regularização de edificações, e revoga a Lei nº 13.740, de 15 de janeiro de 2004. 4.4.5 - Decreto nº 34.632/94 Prorroga ate 31/12/94 prazo p/apresentacao documentos protocolamento/recolhimento cf.lei 4.4.6 - Decreto nº 34313/94 Regulamenta a lei;art.30-data da vigencia da lei 11.522/94, DOM 200794,p.39promulga inc.ix, art. 3 e par. 3 ,art.7 anteriormente vetadas;repub.DOM 270794,p.36 4.4.7 – Decreto n° 43.383, de 25 de Junho de 2003. Regulamenta a Lei nº 13.558, de 14 de abril de 2003, que dispõe sobre a regularização de edificações e dá outras providências. 4.4.8 – Decreto n° 45.324, de 24 de Setembro de 2004. Regulamenta a Lei nº 13.558, de 14 de abril de 2003, alterada pela Lei nº 13.876, de 23 de julho de 2004, que dispõe sobre a regularização de edificações. 4.5 - Leis e Decretos referentes à Uso e Ocupação de Solo 4.5.0 – Lei 10.205, de 04 de dezembro de 1986. Dispõe e disciplina a expedição de Licença de Funcionamento, e da outras providências. 4.5.1 - Lei 11.501, de 11 de abril de 1994. Dispõe sobre o controle e a fiscalização das atividades que geram poluição sonora, ou seja, dispõe sobre o controle e a fiscalização das atividades que gerem poluição sonora; impõe penalidades, e dá outras providências. 4.5.2 - Lei 11.631, de 21de setembro de 1994. Altera redação do art. 3º da lei 11.501 4.5.3 - Lei 11.986, de 16 de janeiro de 1996. Altera o art. 1º, 3º, 4º, 6º, 8º e 9º .Suprime o art. 7º e 10 da lei 11.501 4.5.4 - Lei 11.804, de 19 de junho de 1995. Dispõe sobre avaliação da aceitabilidade de ruídos na Cidade de São Paulo, visando o conforto da comunidade. Revoga a Lei 8.106, de 30 de agosto de 1974 e seu Decreto Regulamentador 11.467, de 30 de outubro de 1974. 4.5.5 - Lei 13.885, de 25 de Agosto de 2004. (Projeto de Lei nº 139/04, do Executivo, aprovado na forma de Substitutivo do Legislativo) Estabelece normas complementares ao Plano Diretor Estratégico, institui os Planos Regionais Estratégicos das Subprefeituras, dispõe sobre o parcelamento, disciplina e ordena o Uso e Ocupação do Solo do Município de São Paulo. Elaborado por: Analisado por: Professor : Marcelo Gandra Falcone Alessandra Aparecida Vieira Marcelo Gandra Falcone QUANDO IMPRESSO CONSIDERAR PIRATARIA - CÓPIA NÃO AUTORIZADA
  • 363.
    UNINOVE Rev. B Engenharia deAvaliações e Perícias Manutenção Predial e Avaliação de Máquinas e Equipamentos 16/07/2011 Folha 363/424 4.5.6 - Decreto no: 33132 - Dispõe sobre a substituição e retirada de Para-raios radioativos, e da outras providencias. 4.5.6 – Decreto 45. 817, de 4 de Abril de 2005. Dispõe sobre a classificação dos usos residenciais e não residenciais. 4.6 - Legislação referente à Estádios 4.6.1 – Lei 11.791, de 1 de Junho de 1995. Dispõe sobre a obrigatoriedade da implantação de mecanismos apropriados para a contagem do público junto aos locais de entrada de todos os estádios de futebol no município de São Paulo. 4.6.2 – Lei 11.873, de 21 de Novembro de 1995. Instalação de sistema de detecção de metais em ginásios esportivos e estádios de futebol. 4.6.3 - Lei 12.016, de 2 de Abril de 1996. Dispõe sobre a obrigatoriedade dos Estádios de Futebol criarem e implantarem campanhas de conscientização para diminuir a violência em suas dependências. 4.6.4 – Lei 12.093, de 25 de Junho de 1996. Torna obrigatória a manutenção de Unidades de Atendimento Médico Móveis nos estádios de futebol, ginásios esportivos e locais de grande concentração de pessoas. 4.6.5 – Lei 12.402, de 4 de Julho de 1997. Veda a comercialização de bebidas alcoólicas nos estádios. 4.6.6 – Lei 12.561, de 8 de Janeiro de 1998. Dispõe sobre a criação de locais específicos, reservados exclusivamente para deficientes físicos que necessitem de cadeira de rodas para sua locomoção, nos Estádios de Futebol e Ginásios esportivos do Município de São Paulo, e dá outras providências. 4.6.7 – Lei 13.945, de 7 de Janeiro de 2005. Refere-se à manutenção de aparelhos desfibriladores. 4.6.8 - Lei 14.621, de 11 de Dezembro de 2007. Altera o art. 1º da Lei nº 13.945, de 7 de janeiro de 2005. 4.6.9 - Lei 14.726, de 15 de Maio de 2008. Estabelece normas para repressão a comercialização e ao consumo de bebidas alcoólicas nos estádios de futebol e conjuntos poliesportivos no município de São Paulo, em eventos esportivos profissionais e dá outras providências. 4.6.10 - Decreto 27.820, de 15 de Junho de 1989. Dispõe sobre a atuação do departamento de Controle de Uso de Imóveis – Contru, no controle e na fiscalização Elaborado por: Analisado por: Professor : Marcelo Gandra Falcone Alessandra Aparecida Vieira Marcelo Gandra Falcone QUANDO IMPRESSO CONSIDERAR PIRATARIA - CÓPIA NÃO AUTORIZADA
  • 364.
    UNINOVE Rev. B Engenharia deAvaliações e Perícias Manutenção Predial e Avaliação de Máquinas e Equipamentos 16/07/2011 Folha 364/424 relativos a segurança de uso de estádios, ginásios de esportes e similares, e dá outras providências. 4.6.11- Decreto 48.379, de 25 de Maio de 2007. Dispõe sobre a transferência de parte das competências da Secretaria Municipal de Habitação para as Subprefeituras, em face das disposições da Lei n° 13.885, de 25 de agosto de 2004, conforme especifica. 4.6.12 - Decreto 49.277, de 4 de Março de 2008 . Regulamenta a Lei nº 13.945, de 7 de janeiro de 2005, alterada pela Lei nº 14.621, de 11 de dezembro de 2007, que dispõe sobre a obrigatoriedade da manutenção de aparelho desfibrilador externo automático nos locais que designa; revoga o Decreto nº 46.914, de 17 de janeiro de 1996. 4.6.13 – Portaria 014/SehabG/96, de 1996. Determina que os estádios esportivos para efeito de cálculo de lotação, deverão atender os parâmetros estabelecidos. 4.6.14 – Portaria 508/SehabG/04, de 2004. Refere-se à fixação da lotação dos estádios. 4.6.15 – Portaria 659/SehabG/95, de 1995. Os estádios de futebol, deverão ser adaptados para atender as exigências que especifica, devido a precariedade das estruturas dos estádios de futebol da cidade de São Paulo constatadas em vistorias do CONTRU. 4.7 – Legislação Referente à Circos e Parques. 4.7.1 - Lei 11.359, de 17 de Maio de 1993. Proibição de rodeio, tourada ou eventos similares. 4.7.2 - Lei 13.206, de 8 de Novembro de 2001. Contrato de seguro contra danos e causados por seus equipamentos a terceiros. 4.7.3 – Lei 13.595/03, de 26 de Maio de 2003. Estabelece normas a serem observadas por circos quando da apresentação de animais ferozes, e dá outras providências. 4.7.4 - Lei 14.014, de 30 de Junho de 2005. Proíbe utilização de animais de qualquer espécie em circos e congêneres. 4.7.5 - Decreto 37.584, de 18 de Agosto de 1998. Regulamenta a Lei 11.359/93. 4.7.6 - Decreto 41.636, de 23 de Janeiro de 2002. Regulamenta a lei 13.206/01. Elaborado por: Analisado por: Professor : Marcelo Gandra Falcone Alessandra Aparecida Vieira Marcelo Gandra Falcone QUANDO IMPRESSO CONSIDERAR PIRATARIA - CÓPIA NÃO AUTORIZADA
  • 365.
    UNINOVE Rev. B Engenharia deAvaliações e Perícias Manutenção Predial e Avaliação de Máquinas e Equipamentos 16/07/2011 Folha 365/424 4.7.7 – Decreto 44.026, de 22 de Outubro de 2003. Regulamenta a Lei nº 13.595, de 26 de maio de 2003, que estabelece normas a serem observadas por circos quando da apresentação de animais ferozes. 4.7.8 - Decreto 46.987, de 8 de Fevereiro de 2006. Regulamenta a Lei 14.014/05. 4.7.9 - Decreto 47.803, de 24 de Outubro de 2006. Dá nova redação ao "caput" do artigo 3º e ao § 1º do artigo 4º do Decreto nº 46.987, de 8 de fevereiro de 2006, que regulamenta a Lei nº 14.014, de 30 de junho de 2005, que proíbe, a utilização de animais de qualquer espécie. 4.7.10 - Decisão Normativa Nº 52 do Confea, de 25 de Agosto de 1994, Dispõe sobre a obrigatoriedade de responsável técnico pelas instalações das empresas que exploram parques de diversões. 4.8 - Legislação Referente ao Tabagismo. 4.8.1 – Lei 10.862, de 4 de Julho de 1990. Dispõe sobre a restrição ao tabagismo nos locais que especifica, e dá outras providências. 4.8.2 – Decreto 34.836, de 31 de Janeiro de 1995. Regulamenta a Lei 10.862/90. 4.8.3 – Decreto 49.524, de 27 de Maio de 2008. Regulamenta Leis 10.862/90 e Lei nº 14.695 referente ao uso de charutos, cigarrilhas e cachimbos. 4.9 - Legislação Referente à Acessibilidade. 4.9.1 Legislação Municipal  Código de Obras e Edificações - Lei 11.228/92 regulamentada pelo Decreto 32.392/92 de 23/09/1992; de 26/06/1992,  Lei nº 11.345, de 14 de abril de 1993. (Projeto de Lei nº 626/91, do Vereador Antônio Carlos Caruso) Dispõe sobre a adequação das edificações à pessoa portadora de deficiência, e dá outras providências.  Lei nº 11.424, de 30 de setembro de 1993. Dispõe sobre o acesso de pessoas deficientes físicas a cinemas, teatros e casas de espetáculos; Elaborado por: Analisado por: Professor : Marcelo Gandra Falcone Alessandra Aparecida Vieira Marcelo Gandra Falcone QUANDO IMPRESSO CONSIDERAR PIRATARIA - CÓPIA NÃO AUTORIZADA
  • 366.
    UNINOVE Rev. B Engenharia deAvaliações e Perícias Manutenção Predial e Avaliação de Máquinas e Equipamentos 16/07/2011 Folha 366/424  Lei nº 11.987, de 16 de Janeiro de 1996. Dispõe sobre a obrigatoriedade de instalação nos parques do Município de São Paulo, de pelo menos um brinquedo destinado para crianças portadoras de doenças mentais, ou deficiência física, e dá outras providências.  Lei n° 12.363, de 13 de Junho de 1997. Prevê menu em braile para deficientes visuais em restaurantes.  Lei nº 12.815, de 06 de abril de 1999. Dá nova redação ao artigo 1º da Lei nº 11.424, de 30 de setembro de 1993, que dispõe sobre o acesso de pessoas portadoras de deficiência física a cinemas, teatros, casas de espetáculos e estabelecimentos bancários;  Lei nº 12.821, de 07 de abril de 1999. Dispõe sobre a obrigatoriedade dos estabelecimentos bancários com acesso único através de porta giratória manterem acesso, em rampa quando for o caso, para as pessoas portadoras de deficiência física, que se locomovem em cadeira de rodas, e dá outras providências;  Decreto nº 37.648, de 25 de setembro de 1998. Institui o Selo de Acessibilidade, torna obrigatório o seu uso nos bens que especifica e dá outras providências;  Decreto nº 37.649, de 26 de Setembro de 1998.. Regulamenta as Leis 11.345/93 e 11424/93.  Decreto nº 37.650, de 25 de setembro de 1998. Dá nova redação aos artigos 1º, 4º, inciso, alínea “b” e 5º do Decreto nº 36.072, de 09 de maio de 1996, e dá outras providências;  Decreto nº 39.651, de 27 de julho de 2000. Institui a Comissão Permanente de Acessibilidade – CPA, e dá outras providências;  Decreto nº 45.122, de 12 de agosto de 2004 Consolida a regulamentação das Leis nº 11.345, de 14 de abril de 1993, nº 44.424, de 30 de setembro de 1993, nº 12.815, de 6 de abril de 1999 e nº 12.821, de 07 de abril de 1999, que dispõem sobre a adequação das edificações à acessibilidade das pessoas com deficiência ou com mobilidade reduzida;  Decreto 45.552, de 29 de Novembro de 2004. Dispõe sobre selo de acessibilidade instituído pelo decreto 37.648/98.  Decreto nº 45.990, de 20 de junho de 2005. Elaborado por: Analisado por: Professor : Marcelo Gandra Falcone Alessandra Aparecida Vieira Marcelo Gandra Falcone QUANDO IMPRESSO CONSIDERAR PIRATARIA - CÓPIA NÃO AUTORIZADA
  • 367.
    UNINOVE Rev. B Engenharia deAvaliações e Perícias Manutenção Predial e Avaliação de Máquinas e Equipamentos 16/07/2011 Folha 367/424 Institui os Selos de Habitação Universal e de Habitação Visitável para unidades habitacionais unifamiliares e multifamiliares já construídas ou em construção.  Portaria Intersecretarial Nº 2/2008 Secretaria: SMPED /SEHAB/SMSP Institui "Check list" orientativo e declaratório quanto aos aspectos da Acessibilidade e Manual de Instruções Técnicas relativas à Acessibilidade nas Edificações e Vias públicas para apoio aos órgãos municipais e aos profissionais da área de construção civil.  Resolução nº 06 –CPA/ 2002. Plataformas de elevador vertical/ inclinado 4.9.2. Legislação do Estado de São Paulo  LEI N.º 5.500, DE 31 DE DEZEMBRO DE 1986 Dá nova redação ao art. 1º da Lei n.º 3.710, de 4 de janeiro de 1983, que estabelece condições para acesso aos edifícios públicos pelos deficientes físicos.  LEI N.º 5.869, DE 28 DE OUTUBRO DE 1987 Obriga as empresas permissionárias, que especifica, a permitir a entrada de deficientes físicos pela porta dianteira dos coletivos.  LEI N.º 7.466, DE 1º DE AGOSTO DE 1991 Dispõe sobre atendimento prioritário a idosos, portadores de deficiência e gestantes.  LEI N.º 8.894, DE 16 DE SETEMBRO DE 1994 Dispõe sobre o financiamento de equipamentos corretivos a portadores de deficiência.  LEI N.º 9.086, DE 03 DE MARÇO DE 1995 Determina aos órgãos da Administração Direta e Indireta a adequação de seus projetos, edificações, instalações e mobiliário ao uso de pessoas portadoras de deficiências.  LEI N.º 9.486, DE 04 DE MARÇO DE 1997 Institui o Dia Estadual de Luta das Pessoas Portadoras de Deficiência.  LEI N.º 9.732, DE 15 DE SETEMBRO DE 1997 Dá nova redação ao art. 1º da Lei n.º 5.869, de 28 de outubro de 1987, que dispõe sobre o embarque, nos coletivos intermunicipais, dos usuários que especifica.  LEI N.º 9.938, DE 17 DE ABRIL DE 1998 Dispõe sobre os direitos da pessoa portadora de deficiência. Elaborado por: Analisado por: Professor : Marcelo Gandra Falcone Alessandra Aparecida Vieira Marcelo Gandra Falcone QUANDO IMPRESSO CONSIDERAR PIRATARIA - CÓPIA NÃO AUTORIZADA
  • 368.
    UNINOVE Rev. B Engenharia deAvaliações e Perícias Manutenção Predial e Avaliação de Máquinas e Equipamentos 16/07/2011 Folha 368/424  DECRETO N.º 23.131, DE 19 DE DEZEMBRO DE 1984 Cria o Conselho Estadual para Assuntos da Pessoa Deficiente.  DECRETO N.º 23.250, DE 1º DE FEVEREIRO DE 1985 Determina atendimento preferencial a idosos, deficientes físicos e gestantes, por parte dos órgãos estaduais que prestam atendimento direto ao público.  DECRETO N.º 25.087, DE 28 DE ABRIL DE 1986 Dispõe sobre medida para assegurar às pessoas deficientes condições adequadas de participação nos concursos públicos e processos seletivos.  DECRETO N.º 27.383, DE 22 DE SETEMBRO DE 1987 Dispõe sobre adequação de próprios estaduais ao uso de pessoas portadoras de deficiência física, e dá outras providências.  DECRETO N.º 33.823, DE 21 DE SETEMBRO DE 1991 Institui o Programa Estadual de Atenção à Pessoa Portadora de Deficiência.  DECRETO N.º 33.824, DE 21 DE SETEMBRO DE 1991 Dispõe sobre adequação de próprios estaduais à utilização de portadores de deficiências, e dá outras providências.  DECRETO N.º 34.753, DE 1º DE ABRIL DE 1992 Regulamenta a Lei Complementar nº 666, de 26 de novembro de 1991, que concede isenção de pagamento de tarifas de transporte coletivo urbano e dá providências correlatas.  RESOLUÇÃO STM-101, DE 28 DE MAIO DE 1992 Disciplina as medidas administrativas e operacionais necessárias à implantação da isenção do pagamento de tarifas de transporte coletivo urbano, de âmbito metropolitano, sob responsabilidade do Estado, concedida às pessoas portadoras de deficiência.  LEI ESTADUAL Nº 11.369, DE 28/03/2003 Veda qualquer forma de discriminação racial, ao idoso, à pessoa portadora de necessidades especiais, à mulher e dá outras providências. 4.9.3. Legislação Federal   Constituição da República Decreto nº 5.626, de 22 de dezembro de 2005 Regulamenta a Lei nº 10.436, de 24 de abril de 2002, que dispõe sobre a Elaborado por: Analisado por: Professor : Marcelo Gandra Falcone Alessandra Aparecida Vieira Marcelo Gandra Falcone QUANDO IMPRESSO CONSIDERAR PIRATARIA - CÓPIA NÃO AUTORIZADA
  • 369.
    UNINOVE Rev. B Engenharia deAvaliações e Perícias Manutenção Predial e Avaliação de Máquinas e Equipamentos 16/07/2011 Folha 369/424 Língua Brasileira de Sinais - Libras, e o artigo 18 da Lei nº 10.098, de 19 de dezembro de 2000.  LEI Nº 11.126, DE 27 DE JUNHO DE 2005. Dispõe sobre o direito do portador de deficiência visual de ingressar e permanecer em ambientes de uso coletivo acompanhado de cão-guia.  Decreto n° 5296, de 02 de dezembro de 2004 Regulamenta as Leis n°s 10.048, de 8 de novembro de 2000, que dá prioridade de atendimento às pessoas que especifica, e 10.098, de 19 de dezembro de 2000, que estabelece normas gerais e critérios básicos para a promoção da acessibilidade.  LEI Nº 10.436, DE 24 DE ABRIL DE 2002  Dispõe sobre a Língua Brasileira de Sinais - Libras e dá outras providências.  Decreto nº 3.691, de 19/12/00, que regulamenta a Lei nº 8.899, de 29/06/94, que instituiu o passe livre para pessoas portadoras de deficiência em serviço convencional das empresas de transporte coletivo interestadual de passageiros nas modalidades ônibus, trem ou barco, incluindo transportes interestaduais semi-urbanos.  Lei nº 10.098, de 19/12/00, que estabelece normas gerais e critérios básicos para a promoção da acessibilidade das pessoas portadoras de deficiência ou com mobilidade reduzida.  Lei nº 10.097, de 19/12/00, que altera dispositivos da CLT normatizando o contrato de aprendizagem para adolescentes entre 14 e menor de 18 anos.  Lei nº 10.048, de 08/11/00, que estabelece atendimento prioritário às pessoas portadoras de deficiência física, idosos, gestantes, lactantes acompanhadas de crianças de colo.  Decreto nº 3.298, de 20 de dezembro de 1999, que regulamenta a Lei 7.853/99 de 24/10/99, dispõe sobre a Política Nacional para a Integração da Pessoa Portadora de Deficiência, consolida normas de proteção e dá outras providências.  Lei nº 9.867, de 10/11/99, que dispõe sobre a criação de Cooperativas Sociais, nelas incluídas aquelas formadas por portadores de deficiência, dependentes químicos, egressos do sistema prisional, condenados a penas alternativas à detenção e adolescentes em idade adequada ao trabalho, que se encontrem em difícil situação econômica. Elaborado por: Analisado por: Professor : Marcelo Gandra Falcone Alessandra Aparecida Vieira Marcelo Gandra Falcone QUANDO IMPRESSO CONSIDERAR PIRATARIA - CÓPIA NÃO AUTORIZADA
  • 370.
    UNINOVE Rev. B Engenharia deAvaliações e Perícias Manutenção Predial e Avaliação de Máquinas e Equipamentos 16/07/2011 Folha 370/424  Decreto nº 3.048, de 6 de maio de 1999. aprova o Regulamento da Previdência Social.  Lei nº 9.790, de 23/3/99, que dispõe sobre a qualificação de pessoas jurídicas de direito privado, sem fins lucrativos, como Organizações da Sociedade Civil de Interesse Público e institui o Termo de Parceria. Regulamentada pelo Decreto 3.100, de 30/6/99.  Lei nº 9.394, de 20/12/96, que estabelece diretrizes e bases da educação nacional. Define educação e habilitação profissional e tratamento especial a pessoas portadoras de deficiência e superdotados. Regulamentada pelo Decreto 2.208, de 17/4/97.  Lei nº 8.859, de 23/03/94, que modifica dispositivos da Lei nº 6.494, de 7 de dezembro de 1997, estendendo aos alunos de ensino especial o direito à participação em atividades de estágio.  Lei nº 8.742, de 07/12/93, que trata da organização da assistência social. No art. 20 prevê o benefício da prestação continuada, garantindo ao portador de deficiência carente e incapacitado para a vida independente e para o trabalho, um salário mínimo mensal.  Lei nº 8.666, de 21/06/93, que trata das licitações do Poder Público, permitindo sua dispensa para contratação de associação de portadores de deficiência física, sem fins lucrativos e de comprovada idoneidade, por órgãos ou entidades da administração pública (art. 24, inciso XX).  Lei nº 8.213, de 24/07/91, cujo art. 93 obriga a empresa com mais de cem empregados a preencher de dois a cinco por cento de seus cargos, com beneficiários reabilitados ou pessoas portadoras de deficiência habilitadas, sob pena de multa. Esta, a proporção: até 200 empregados – 2%; de 201 a 500 – 3%; de 501 a 1000 – 4% de; 1001 em diante – 5%. A dispensa de trabalhador reabilitado ou de deficiente habilitado, no contrato por prazo determinado de mais de 90 dias, e a imotivada, no contrato por prazo indeterminado, só poderão ocorrer após a contratação de substituto de condição semelhante.  O art. 16 trata dos beneficiários do regime geral da previdência social na condição de segurado (incisos I, III e IV). O termo ali utilizado e que contempla a pessoa portadora de deficiência é, equivocadamente, "inválido".  O art. 77 trata da pensão por morte e inclui o portador de deficiência, mais uma vez, aqui designado como "inválido". Elaborado por: Analisado por: Professor : Marcelo Gandra Falcone Alessandra Aparecida Vieira Marcelo Gandra Falcone QUANDO IMPRESSO CONSIDERAR PIRATARIA - CÓPIA NÃO AUTORIZADA
  • 371.
    UNINOVE Rev. B Engenharia deAvaliações e Perícias Manutenção Predial e Avaliação de Máquinas e Equipamentos 16/07/2011 Folha 371/424  Lei nº 8.112, de 11/12/90, que assegura aos portadores de deficiência o direito de se inscreverem em concurso público para provimento de cargos cujas atribuições sejam compatíveis com a deficiência de que são portadores, reservando-lhes até 20% do total das vagas oferecidas no concurso (art. 5º, § 2º).  Lei nº 8.069, de 13/07/90, Estatuto da Criança e do Adolescente, que assegura ao adolescente portador de deficiência o trabalho protegido, garantindo-se seu treinamento e colocação no mercado de trabalho e também o incentivo à criação de oficinas abrigadas.  Lei nº 7.853, de 24/10/89, que dispõe sobre o apoio às pessoas portadoras de deficiência, sua integração social e sobre a CORDE (Coordenadoria Nacional para Integração da Pessoa Portadora de Deficiência). Aborda a tutela jurisdicional de interesses coletivos ou difusos dessas pessoas e as responsabilidades do Ministério Público. Define como crime, punível com reclusão, obstar, sem justa causa, o acesso de alguém a qualquer cargo público, por motivos derivados de sua deficiência, bem como negar-lhe, pelo mesmo motivo, emprego ou trabalho.  Lei nº 6.494, de 7/12/77, que dispõe sobre os estágios de estudantes de estabelecimentos de ensino superior e de ensino profissionalizante do 2º Grau, supletivo e escolas de educação especial.  Lei nº 5.764/71, de 16/12/71, que define a Política Nacional de Cooperativismo, institui o regime jurídico das sociedades cooperativas e dá outras providências. 4.9.4. Legislação Internacional  Convenção nº III da OIT, de 25/06/58, promulgada pelo Decreto nº 62.150, de 19/01/68, que trata da discriminação em matéria de emprego e profissão.  Art. Iº, I, b – (discriminação compreende) qualquer outra distinção, exclusão ou preferência, que tenha por efeito anular ou reduzir a igualdade de oportunidades, ou tratamento, emprego ou profissão. Ressalva que a distinção, exclusão ou preferência, com base em qualificações exigidas para determinado emprego não implicam em discriminação.  Recomendação nº III, de 25/06/58, que suplementa a Convenção III da OIT sobre discriminação em matéria de emprego e profissão. Define discriminação, formula políticas e sua execução. Elaborado por: Analisado por: Professor : Marcelo Gandra Falcone Alessandra Aparecida Vieira Marcelo Gandra Falcone QUANDO IMPRESSO CONSIDERAR PIRATARIA - CÓPIA NÃO AUTORIZADA
  • 372.
    UNINOVE Rev. B Engenharia deAvaliações e Perícias Manutenção Predial e Avaliação de Máquinas e Equipamentos 16/07/2011 Folha 372/424  Resolução nº 3.447, aprovada pela Assembléia Geral da ONU em 09/12/75, sobre a Declaração dos Direitos das Pessoas Deficientes.  Resolução nº 2.896, aprovada pela Assembléia Geral da ONU, sobre a Declaração dos Direitos dos Retardados Mentais.  Declaração Universal dos Direitos do Homem e do Cidadão – aprovada pela Assembléia Geral da Organização das Nações Unidas, em 10/12/48, "todo o homem tem direito ao trabalho, à livre escolha de emprego, à condições justas e favoráveis de trabalho e à proteção contra o desemprego.  Resolução nº 45, de 14/12/90, 68ª Assembléia Geral das Nações Unidas – ONU. Execução do Programa de Ação Mundial para as pessoas Deficientes e a Década das Pessoas Deficientes das Nações Unidas, compromisso mundial no sentido de se construir uma sociedade para todos, segundo a qual a Assembléia Geral solicita ao Secretário-Geral uma mudança no foco do programa das Nações Unidas sobre deficiência passando da conscientização para a ação, com o propósito de se concluir com êxito uma sociedade para todos por volta do ano 2010.  Recomendação nº 99, de 25/06/55, relativa à reabilitação profissional das pessoas portadoras de deficiência – aborda princípios, e métodos de orientação vocacional e treinamento profissional, meios de aumentar oportunidades de emprego para os portadores de deficiência, emprego protegido, disposições especiais para crianças e jovens portadores de deficiência.  Convenção nº 159 da OIT, de 20/06/83, promulgada pelo Decreto nº 129, de 22.05.91, que trata da política de readaptação profissional e emprego de pessoas portadoras de deficiência. Essa política é baseada no princípio de igualdade de oportunidade entre os trabalhadores portadores de deficiência e os trabalhadores em geral. Medidas especiais positivas que visem garantir essa igualdade de oportunidades não serão consideradas discriminatórias com relação aos trabalhadores em geral.  Recomendação nº 168, de 20/06/83, que suplementa a convenção relativa à reabilitação profissional e emprego de 1983 e a Recomendação relativa à reabilitação profissional de 1955. Prevê a participação comunitária no processo, a reabilitação profissional em áreas rurais, contribuições de empregadores e trabalhadores e dos próprios portadores de deficiência na formulação de políticas específicas.  Convenção Interamericana para a Eliminação de todas as formas de Discriminação contra as Pessoas Portadoras de Deficiência – promulgada Elaborado por: Analisado por: Professor : Marcelo Gandra Falcone Alessandra Aparecida Vieira Marcelo Gandra Falcone QUANDO IMPRESSO CONSIDERAR PIRATARIA - CÓPIA NÃO AUTORIZADA
  • 373.
    UNINOVE Rev. B Engenharia deAvaliações e Perícias Manutenção Predial e Avaliação de Máquinas e Equipamentos 16/07/2011 Folha 373/424 pelo Decreto 3.956 de 08 de outubro de 2001, que tem por objetivo eliminar todas as formas de discriminação contra as pessoas portadoras de deficiência e propiciar sua plena integração à sociedade. 4.10 – Legislação Referente à Teatros e Cinemas. 4.10.1 – Lei 11.545, de 7 de Junho de 1994. Disciplina o uso de aparelhos de telefonia celular e congêneres no interior dos cinemas, teatros, hospitais, velórios, casas de espetáculos e nas dependências das repartições públicas municipais, e dá outras providências. 4.10.2 – Lei 11.786, de 26 de Maio de 1995. Torna obrigatória em todos os cinemas, cineclubes, cinematecas, teatros, casas de espetáculo, estádios de futebol, ginásios de esportes e demais estabelecimentos congêneres a manutenção de toda a lotação com lugares numerados. 4.10.3 – Lei 12.658, de 18 de Maio de 1998. Obriga os cinemas, teatros, bibliotecas, ginásios esportivos, casas noturnas e restaurantes a manter em suas dependências cadeiras ou poltronas especiais para uso de pessoas obesas, e dá outras providências. 4.10.4 – Lei 13.451, de 22 de Novembro de 2002. Altera a redação do artigo 1º da Lei nº 11.786, de 26 de maio de 1995, e dá outras providências. 4.10.5 – Decreto 34.571, de 12 de Outubro de 1994. Dispõe sobre a obrigatoriedade de divulgação das condições mínimas de segurança ao público presente em locais de reunião, e da outras providências. 4.10.6 – Decreto 40.334, de 16 de Março de 2001. Regulamenta a Lei nº 11.786, de 26 de maio de 1995, que torna obrigatória em todos os cinemas, cineclubes, cinematecas, teatros, casas de espetáculo, estádio de futebol, ginásios de esportes e demais estabelecimentos congêneres a manutenção de toda a lotação com lugares numerados. 4.11 – Legislação Complementar. 4.11.1 – Lei 9.433, de 1 de Abril de 1982. Estabelece penalidades às infrações referentes às normas especiais de segurança de uso, e dá outras providências. 4.11.2 - Lei 11.136, 5 de Dezembro de 1991. Dispõe sobre a obrigatoriedade de instalação de bebedouros para uso coletivo em todos os Shopping-Centers localizados no Município de São Paulo, e da outras providências. Elaborado por: Analisado por: Professor : Marcelo Gandra Falcone Alessandra Aparecida Vieira Marcelo Gandra Falcone QUANDO IMPRESSO CONSIDERAR PIRATARIA - CÓPIA NÃO AUTORIZADA
  • 374.
    UNINOVE Rev. B Engenharia deAvaliações e Perícias Manutenção Predial e Avaliação de Máquinas e Equipamentos 16/07/2011 Folha 374/424 4.11.3 – Lei 11.501, de Abril de 1994. Dispõe sobre o controle e a fiscalização das atividades que gerem poluição sonora; impõe penalidades, e dá outras providências. 4.11.4 - Lei 11.495, de 11 de Abril de 1994. Dispõe sobre a obrigatoriedade da instalação, pelos bancos e demais estabelecimentos de crédito, de sanitários e bebedouros destinados aos seus usuários. 4.11.5 – Lei 11.804 de 19 de Junho de 1995. Dispõe sobre avaliação da aceitabilidade de ruídos na Cidade de São Paulo, visando o conforto da comunidade. Revoga a Lei 8.106, de 30 de agosto de 1974 e seu Decreto Regulamentador 11.467, de 30 de outubro de 1974. 4.11.6 – Lei 13.214, de 22 de Novembro de 2001. Dispõe sobre a obrigatoriedade de instalação de pára-raios, ou sistema de detecção nas áreas que especifica e dá outras providências. 4.11.7 - Lei 13.725, de 15 de maio de 2004 Institui o Código Sanitário do Município de São Paulo. OBS: Código Sanitário do Estado de São Paulo : Lei Nº 10.083, de 23 de setembro de 1998 4.11.8 – Lei 13.885, de 25 de Agosto de 2004. Referente aos limites de ruído baseado no zoneamento. 4.11.9 – Lei 14.450, de 22 de junho de 2007 Institui o Programa de Combate à Venda Ilegal de Bebida Alcoólica e de Desestímulo ao seu Consumo por Crianças e Adolescentes, no âmbito do Município de São Paulo. 4.11.10 - Lei 14.724, de 15 de maio de 2008 Dispõe sobre a obrigatoriedade de fornecimento gratuito de água potável pelas danceterias, salões de dança e estabelecimentos similares aos seus freqüentadores. 4.11.11 – Decreto 10.878, de 8 de Fevereiro de 1974. Institui normas especiais para segurança dos edifícios a serem observadas na elaboração dos projetos e na execução bem como no equipamento e dispõe ainda sobre sua aplicação em caráter prioritário. 4.11.12 - Decreto 12.706, de 9 de Março de 1976. Estabelece normas para utilização de gás combustível nos edifícios e construções em geral, regulamentando os artigos 105 e 110 da Lei nº 8.266, de 20 de junho de 1975, e dá outras providências. 4.11.13 – Decreto 24.714, de 8 de Outubro de 1987. Regulamenta o sistema de fiscalização, disposições gerais para utilização de gás combustível nos edifícios e construções em geral, e dá outras providências. Elaborado por: Analisado por: Professor : Marcelo Gandra Falcone Alessandra Aparecida Vieira Marcelo Gandra Falcone QUANDO IMPRESSO CONSIDERAR PIRATARIA - CÓPIA NÃO AUTORIZADA
  • 375.
    UNINOVE Rev. B Engenharia deAvaliações e Perícias Manutenção Predial e Avaliação de Máquinas e Equipamentos 16/07/2011 Folha 375/424 4.11.14 – Decreto 34.571, de 12 de Outubro de 1994. Dispõe sobre a obrigatoriedade de divulgação das condições mínimas de segurança ao público presente em locais de reunião, e dá outras providências. 4.11.15 – Decreto 42.479, de 7 de Outubro de 2002. Regulamenta a Lei nº 13.214, de 22 de novembro de 2001. 4.11.16 - Decreto 44.577, de 07de Abril de 2004 Regulamenta a Lei Nº 13.725, de 15 de maio de 2004 que Institui o Código Sanitário do Município de São Paulo. 4.11.17 – Decreto 49.662, de 20 de junho de 2008 Regulamenta a Lei nº 14.450, de 22 de junho de 2007, que institui o Programa de Combate à Venda Ilegal de Bebida Alcoólica e de Desestímulo ao seu Consumo por Crianças e Adolescentes no âmbito do Município de São Paulo. 4.11.18 - Decreto 50.079 de 08 de outubro de 2008 Regulamenta a Lei Nº 13.725, de 15 de maio de 2004 que Institui o Código Sanitário. 4.11.19 - Decreto 50.284 de 02 de Dezembro de 2008 Regulamenta a Lei Nº 13.725, de 15/05/04 que Institui o Código Sanitário - óleo comestível. 4.11.20 – Portaria Intersecretarial No: 150 Ano: 1981 Secretaria: SEHAB Institui normas que definam procedimentos básicos referentes aprovação de laudo técnico segurança - LTS, execução obras ou serviços de adaptação e expedição auto de verificação de segurança, conforme Decreto 17216/81, em especial art.19. 4.11.21 - Portaria No 1751 Ano: 2006 Secretaria: PREF Aprova formulário padronizado do Laudo Técnico de Segurança - LTS, para instruir pedidos de Auto de Verificação de Segurança- AVS e Alvará de Funcionamento para Local de Reunião - AFLR Elaborado por: Analisado por: Professor : Marcelo Gandra Falcone Alessandra Aparecida Vieira Marcelo Gandra Falcone QUANDO IMPRESSO CONSIDERAR PIRATARIA - CÓPIA NÃO AUTORIZADA
  • 376.
    UNINOVE Rev. B Engenharia deAvaliações e Perícias Manutenção Predial e Avaliação de Máquinas e Equipamentos 16/07/2011 Folha 376/424 APENDICE 2 - NORMAS ABNT _ NBR POR ASSUNTO: 1 ACESSIBILIDADE  NBR 9050/04 – Acessibilidade de pessoas portadoras de deficiência a edificações, espaços, mobiliários e equipamentos urbanos – Procedimento  NBR 9077/01 – Saídas de emergência em edifícios  NBR 9283/86 – Mobiliário Urbano  NBR 9284/86 – Equipamento Urbano  NBR 10098/87 – PB670 – Elevadores elétricos – Dimensões e condições do projeto de construção  NBR 10982/90 – PB1448 – Elevadores elétricos – Dispositivos de operação e sinalização  NBR 12892/93 – Projeto, fabricação e instalação de elevador unifamiliar.  NBR 13994/00 – Elevadores de passageiros – elevadores para transporte de pessoa com deficiência.  NBR 14020 - Acessibilidade à pessoa com deficiência - Trem de longo percurso  NBR 14021 - Transporte - acessibilidade no sistema de trem urbano ou metropolitano  NBR 14022 - Acessibilidade à pessoa com deficiência em ônibus e trólebus para atendimento urbano e intermunicipal  NBR 14273 - Acessibilidade à pessoa com deficiência no transporte aéreo comercial  NBR 14970-1 - Acessibilidade em veículos automotores - requisitos de dirigibilidade  NBR 14970-2 - Acessibilidade em veículos automotores - diretrizes para avaliação clínica de condutor  NBR 14970-3 - Acessibilidade em veículos automotores - diretrizes para avaliação da dirigibilidade do condutor com mobilidade reduzida em veículo Elaborado por: Analisado por: Professor : Marcelo Gandra Falcone Alessandra Aparecida Vieira Marcelo Gandra Falcone QUANDO IMPRESSO CONSIDERAR PIRATARIA - CÓPIA NÃO AUTORIZADA
  • 377.
    UNINOVE Rev. B Engenharia deAvaliações e Perícias Manutenção Predial e Avaliação de Máquinas e Equipamentos 16/07/2011 Folha 377/424 automotor apropriado  NBR 15250 - Acessibilidade em caixa de auto-atendimento bancário  NBR 15290 - Acessibilidade em comunicação na televisão  NBR 15320/2005 - Acessibilidade à pessoa com deficiência no transporte rodoviário  NBR 14022/2006 - Acessibilidade em veículos de características urbanas para o transporte coletivo de passageiro  ISO/DIS 9386-1 – Plataforma elevatória com acionamento mecânico para pessoas com mobilidade prejudicada – normas de segurança, dimensões e funcionamento  NBR 15450/2006 - Acessibilidade de passageiro no sistema de transporte aquaviário 2 ACÚSTICA  NBR 8572 Fixação de valores de redução de nível de ruído para tratamento acústico de edificações expostas ao ruído aeronáutico – procedimento  NBR 10151 Acústica – Avaliação do ruído em áreas habitadas, visando o conforto da comunidade – procedimento  NBR 10152 Níveis de ruído para conforto acústico  NBR 10829 (NB 1220) Caixilho para edificação – janela – medição de atenuação acústica – método de ensaio  NBR 10830 (TB 355) Acústica dos edifícios  NBR 12179 Tratamento acústico em recintos fechados – procedimento 3 ADITIVOS PARA CONCRETO  NBR 11768 1992 Aditivos para Concreto de Cimento Portland  NBR 12317 1992 Verificação de Desempenho de Aditivos para Concreto Procedimento Elaborado por: Analisado por: Professor : Marcelo Gandra Falcone Alessandra Aparecida Vieira Marcelo Gandra Falcone QUANDO IMPRESSO CONSIDERAR PIRATARIA - CÓPIA NÃO AUTORIZADA
  • 378.
    UNINOVE Engenharia de Avaliaçõese Perícias Manutenção Predial e Avaliação de Máquinas e Equipamentos  Rev. B 16/07/2011 Folha 378/424 NBR 1987 Aditivos Superplastificantes para Concreto de Cimento Portland 4 ALVENARIA  NBR 06136 1994 Bloco vazado de concreto simples para alvenaria estrutural  NBR 08215 1983 Prismas de blocos vazados de concreto simples para alvenaria estrutural - Preparo e ensaio à compressão  NBR 08490 1984 Argamassas endurecidas para alvenaria estrutural - Retração por secagem  NBR 08545 1984 Execução de Alvenaria sem Função Estrutural de Tijolos e Blocos Cerâmicos  NBR 08798 1985 Execução e controle de obras em alvenaria estrutural de blocos vazados de concreto  NBR 08949 1985 Paredes de alvenaria estrutural - Ensaio à compressão simples  NBR 10837 1989 Cálculo de alvenaria estrutural de blocos vazados de concreto 5 AMBIENTAL  NBR 14011 2000 Diretrizes para auditoria ambiental - Procedimentos de auditoria - Auditoria de sistemas de gestao ambiental  NBR 14283 1999 resíduos em solos - determinação da biodegradação pelo método respirométrico 6 AVALIAÇÃO  NBR 14653-1 2001 Avaliação de Bens - Procedimentos Gerais Elaborado por: Analisado por: Professor : Marcelo Gandra Falcone Alessandra Aparecida Vieira Marcelo Gandra Falcone QUANDO IMPRESSO CONSIDERAR PIRATARIA - CÓPIA NÃO AUTORIZADA
  • 379.
    UNINOVE Rev. B Engenharia deAvaliações e Perícias Manutenção Predial e Avaliação de Máquinas e Equipamentos 16/07/2011 Folha 379/424  NBR 14653-2 2004 Avaliação de Bens - Imóveis Urbanos  NBR 14653-3 2004 Avaliação de Bens - Imóveis Rurais  NBR 14653-4 2002 Avaliação de Bens - Empreendimentos  NBR 14653-5 2007 Avaliação de Bens - Máquinas, equipamentos, instalações e bens industriais em geral  NBR 14653-6 2007 Avaliação de Bens - Recursos naturais e ambientais  NBR 14653-7 2008 Avaliação de Bens - Bens de patrimônios históricos, artísticos, culturais, arqueológicos ou paisagísticos 7 ARMADURA PARA CONCRETO  NBR 06349 1991 Fio, Barra e Cordoalha de Aço para Armaduras de Protensão Ensaio de Tração  NBR 07477 1979 Determinação do Coeficiente de Conformação Superficial de Barras e Fios de Aço Destinados a Armaduras de Concreto Armado  NBR 07478 1977 Método de Ensaio de Fadiga de Barras de Aço para Concreto Armado  NBR 07480 1985 Barras e Fios de Aço Destinados a Armaduras para Concreto Armado  NBR 07481 1989 Telas de Aço Soldados para Armadura de Concreto  NBR 07484 1991 Fios, Barras e Cordoalhas de Aço Destinados a Armaduras de Protensão - Ensaio de Relaxação Isotérmica Elaborado por: Analisado por: Professor : Marcelo Gandra Falcone Alessandra Aparecida Vieira Marcelo Gandra Falcone QUANDO IMPRESSO CONSIDERAR PIRATARIA - CÓPIA NÃO AUTORIZADA
  • 380.
    UNINOVE Engenharia de Avaliaçõese Perícias Manutenção Predial e Avaliação de Máquinas e Equipamentos  Rev. B 16/07/2011 Folha 380/424 NBR 08548 1984 Barras de Aço Destinadas a Armaduras para Concreto Armado com Emenda Mecânica ou por Solda - Determinação da Resistência à Tração  NBR 08965 1985 Barras de Aço CA 42S com Característica de Soldabilidade Destinadas a Armaduras para Concreto Armado 8 AR CONDICIONADO  NBR 6401 Instalações de centrais de ar condicionado para conforto – Parâmetros básicos de projeto  NBR 6675 02-jul-93 Instalação de condicionadores de ar de uso doméstico (tipo monobloco ou modular)  NBR 10080 01-nov-87 Instalações de ar condicionado para salas de computadores  NBR 11215 - 1990 - Equipamentos Unitários de Ar-Condicionado  NBR 14679 01-abr-01 Sistemas de condicionamento de ar e ventilação Execução de serviços de higienização 9 CÁLCULO ESTRUTURAL  NBR 06118 1978 Projeto e Execução de Obras de Concreto Armado  NBR 06119 1978 Cálculo e Execução de Lajes Mistas  NBR 06120 1978 Cargas para o Cálculo de Estruturas de Edificações  NBR 07188 1982 Carga Móvel em Ponte Rodoviária e Passarela de Pedestres  NBR 07189 1983 Cargas Móveis para Projeto Estrutural de Obras Ferroviárias  NBR 07190 1951 Cálculo e Execução de Estrutura de Madeira  NBR 07194 1971 Cálculo e Execução de Chaminés Industriais em Alvenaria e em Concreto Armado Elaborado por: Analisado por: Professor : Marcelo Gandra Falcone Alessandra Aparecida Vieira Marcelo Gandra Falcone QUANDO IMPRESSO CONSIDERAR PIRATARIA - CÓPIA NÃO AUTORIZADA
  • 381.
    UNINOVE Rev. B Engenharia deAvaliações e Perícias Manutenção Predial e Avaliação de Máquinas e Equipamentos 16/07/2011 Folha 381/424  NBR 07808 1982 Símbolos Gráficos para Projeto de Estrutura  NBR 14762 1967 Cálculo de Estruturas de Aço Constituídas por Perfis Leves 10 CONCRETO  NBR 05627 1980 Exigências particulares das obras de concreto armado e protendido em relação a resistência ao fogo  NBR 05628 1977 Componente Construtivo Estrutural - Determinação da Resistência ao Fogo  NBR 05629 1975 Estrutura Ancorada no Terreno - Ancoragem Injetada no Terreno  NBR 05738 1994 Moldagem e Cura de Corpos-de-Prova Cilíndricos ou Prismáticos de Concreto - Procedimento  NBR 05739 1974 Ensaio de Compressão de Corpos-de-prova Cilíndricos de Concreto  NBR 05750 1972 Amostragem de Concreto Fresco Produzido por Betoneiras Estacionárias  NBR 05916 1989 Junta de Tela Soldada para Armadura de Concreto - Ensaio de Resistência ao Cisalhamento  NBR 06118 2003 Projeto de estruturas de concreto - Procedimento  NBR 07194 1982 Cálculo e execução de chaminés industriais em alvenaria e em concreto armado  NBR 07212 1984 Execução de Concreto Dosado em Central  NBR 07223 1992 Concreto - Determinação da Consistência pelo Abatimento do Tronco de Cone Elaborado por: Analisado por: Professor : Marcelo Gandra Falcone Alessandra Aparecida Vieira Marcelo Gandra Falcone QUANDO IMPRESSO CONSIDERAR PIRATARIA - CÓPIA NÃO AUTORIZADA
  • 382.
    UNINOVE Engenharia de Avaliaçõese Perícias Manutenção Predial e Avaliação de Máquinas e Equipamentos  Rev. B 16/07/2011 Folha 382/424 NBR 07477 1982 Determinação do coeficiente de conformação superficial de barras e fios de aço destinados a armaduras de concreto armado  NBR 07480 1996 Barras e fios de aço destinados a armaduras para concreto armado  NBR 07584 1982 Concreto Endurecido-Avaliação da Dureza Superficial pelo Esclerômetro de Reflexão  NBR 07680 1981 Extração, Preparo, Ensaio e Análise de Testemunhos de Estruturas de Concreto  NBR 08045 1983 Concreto - Determinação da Resistência Acelerada à Compressão - Método da Água em Ebulição  NBR 08224 1983 Concreto Endurecido - Determinação da Fluência  NBR 08522 1983 Concreto - Determinação do Módulo de Deformação Estática e Diagrama Tensão-deformação  NBR 08548 1984 Barras de aço destinadas a armaduras para concreto armado com emenda mecânica ou por solda - Determinação da resistência à traço  NBR 08681 1984 Ações e Segurança nas Estruturas  NBR 08802 1984 Concreto Endurecido - Determinação da Velocidade de Propagação de Onda Ultra-sônica  NBR 08804 1985 Perfil extrudado à base de elastômeros para juntas de estrutura de concreto-determinação de características físicas, extração acelerada e efeito de álcalis  NBR 08953 1992 Concreto para Fins Estruturais - Classificação por Grupos de Resistência  NBR 08953 1992 Concreto para Fins Estruturais Elaborado por: Analisado por: Professor : Marcelo Gandra Falcone Alessandra Aparecida Vieira Marcelo Gandra Falcone QUANDO IMPRESSO CONSIDERAR PIRATARIA - CÓPIA NÃO AUTORIZADA
  • 383.
    UNINOVE Engenharia de Avaliaçõese Perícias Manutenção Predial e Avaliação de Máquinas e Equipamentos  Rev. B 16/07/2011 Folha 383/424 NBR 08965 1985 Barras de aço CA 42 S com características de soldabilidade destinadas a armaduras para concreto armado  NBR 09062 1985 Projeto e Execução de Estruturas de Concreto Pré-Moldado  NBR 09204 1985 Concreto Endurecido - Determinação da Resistividade Elétrica Estacionárias  NBR 09605 1992 Concreto-Reconstituição do Traço de Concreto Fresco  NBR 09606 1986 Concreto - Determinação da Consistência pelo Espalhamento do Tronco de Cone  NBR 09607 1987 Prova de carga em estruturas de concreto armado e protendido  NBR 09832 1992 Concreto e Argamassa - Determinação dos Tempos de Pega por Meio da Resistência a Penetração  NBR 09833 1987 Concreto Fresco - Determinação da Massa Específica e do Teor de Ar pelo Método Gravimétrico  NBR 10342 1987 Concreto Fresco - Perda de Abatimento  NBR 10786 1989 Concreto Endurecido - Determinação do Coeficiente de Permeabilidade à Água  NBR 10787 1988 Concreto Endurecido - Determinação da Penetração de Água sob Pressão  NBR 10839 1989 Execução de obras de arte especiais em concreto armado e concreto protendido  NBR 11562 1990 Fabricação e Transporte de Concreto para Estruturas de Centrais Nucleoelétricas Elaborado por: Analisado por: Professor : Marcelo Gandra Falcone Alessandra Aparecida Vieira Marcelo Gandra Falcone QUANDO IMPRESSO CONSIDERAR PIRATARIA - CÓPIA NÃO AUTORIZADA
  • 384.
    UNINOVE Engenharia de Avaliaçõese Perícias Manutenção Predial e Avaliação de Máquinas e Equipamentos  Rev. B 16/07/2011 Folha 384/424 NBR 11686 1990 Concreto Fresco - Determinação do Teor de Ar pelo Método Pressométrico  NBR 11919 1978 Barra para Concreto Armado-Verificação de Emendas Metálicas  NBR 12142 1994 Concreto - Determinação de Resistência à Tração na Flexão em Corpos-de-Prova prismáticos  NBR 12646 1992 Paredes de Concreto Celular Espumoso Moldadas no Local Especificação  NBR 12654 1992 Controle Tecnológico de Materiais Componentes do Concreto  NBR 12655 1992 Preparo, Controle e Recebimento de Concreto - Procedimento  NBR 12815 1994 Concreto Endurecido - Determinação do Coeficiente de Dilatação Térmica Linear - Método de Ensaio  NBR 12816 1994 Concreto Endurecido - Determinação da Capacidade de Deformação de Concreto Submetido à Tração na Flexão - Método de Ensaio  NBR 12818 1994 Concreto - Determinação na Difusidade Térmica - Método de Ensaio  NBR 12819 1994 Concreto e Argamassa - Dterminação da Elevação Adiabática da Temperatura - Méotodo de Ensaio  NBR 12820 1994 Concreto - Endurecido - Determinação da Condutibilidade Térmica - Método de Ensaio  NBR 12821 1994 Preparação de Concreto em Laboratório - Procedimento  NBR 13044 1994 Concreto Projetado - Reconstituição da Mistura Recém Projetada - Método de Ensaio. Elaborado por: Analisado por: Professor : Marcelo Gandra Falcone Alessandra Aparecida Vieira Marcelo Gandra Falcone QUANDO IMPRESSO CONSIDERAR PIRATARIA - CÓPIA NÃO AUTORIZADA
  • 385.
    UNINOVE Engenharia de Avaliaçõese Perícias Manutenção Predial e Avaliação de Máquinas e Equipamentos  Rev. B 16/07/2011 Folha 385/424 NBR 13069 1994 Concreto Projetado - Determinação dos termos de pega em pasta de cimento portland,c/s a utilização de aditivo acelerador de pega - método de ensaio  NBR 13070 1994 Moldagem de Placas para Ensaio de Argamassa e Concreto Projetados - Procedimento  NBR 14931 2004 Execução de Estruturas de Concreto 11 CONCRETO PROTENDIDO  NBR 07197 1989 Projeto de Estruturas de Concreto Protendido  NBR 07482 1990 Fios de Aço para Concreto Protendido  NBR 07483 1990 Cordoalhas de Aço para Concreto Protendido  NBR 10788 1988 Execução da Injeção em Concreto Protendido com Aderência Posterior  NBR 10789 1988 Execução da Protensão em Concreto Protendido com Aderência Posterior  NBR 10839 1989 Execução de Obras de Arte Especiais em Concreto Armado e Concreto Protendido 12 DESENHOS  NBR 06492 1994 Representação de projetos de Arquitetura  NBR 07191 1951 Execução de Desenhos para Obras de Concreto Simples ou Armado  NBR 08196 1999 Desenho tecnico - Emprego de escalas  NBR 08403 1984 Desenho tecnico - aplicacao de linhas em desenhos Elaborado por: Analisado por: Professor : Marcelo Gandra Falcone Alessandra Aparecida Vieira Marcelo Gandra Falcone QUANDO IMPRESSO CONSIDERAR PIRATARIA - CÓPIA NÃO AUTORIZADA
  • 386.
    UNINOVE Rev. B Engenharia deAvaliações e Perícias Manutenção Predial e Avaliação de Máquinas e Equipamentos 16/07/2011 Folha 386/424  NBR 10067 1995 Princípios gerais de representação em desenho técnico  NBR 10068 1987 Folha de desenho lay-out e dimensões  NBR 10126 1987 Cotagem em Desenho Técnico  NBR 10582 1988 Apresentacao da folha para desenho tecnico  NBR 10647 1989 Desenho Técnico - Terminologia  NBR 12298 1995 Representação de área de corte por meio de hachuras em desenho técnico  NBR 13142 1999 Desenho tecnico - Dobramento de copia  NBR 13531 1995 Elaboração de projetos e Edificações-Atividades técnicas  NBR 14611 2000 Desenho tecnico representacao de estruturas metalicas 13 DISTRIBUIÇÃO DE GLP / GN  NBR 8473 4kg/H  NBR 8613 - 1999  NBR 8614 - 1999 Válvulas automáticas para recipientes transportáveis para 2kg, 5kg e 13kg de GLP  NBR 13523 - Central predial de gás liquefeito de petróleo (GLP).  NBR 13794 – 1997 - Registro para recipientes transportáveis para 45kg e 90kg de GLP  NBR 13932 - 1997 - Instalacoes internas de GLP  NBR 13933 - 1997 - Instalações Internas de Gás Natural (GN)  NBR 14024 - Centrais prediais e industriais de gás liquefeito de petróleo sistema de abastecimento a granel.  NBR 14536 – 2000 - Registros para recipientes transportáveis para 20kg de GLP - 2001 Regulador de baixa pressão para GLP com capacidade ate Mangueiras de PVC para instalações domesticas de GLP Elaborado por: Analisado por: Professor : Marcelo Gandra Falcone Alessandra Aparecida Vieira Marcelo Gandra Falcone QUANDO IMPRESSO CONSIDERAR PIRATARIA - CÓPIA NÃO AUTORIZADA
  • 387.
    UNINOVE Rev. B Engenharia deAvaliações e Perícias Manutenção Predial e Avaliação de Máquinas e Equipamentos 16/07/2011 Folha 387/424  NBR 15526 - Redes de distribuição interna para gases combustíveis em instalações residenciais e comerciais - Projeto e execução  NBR 15358 - Redes de distribuição para gases combustíveis em instalações comerciais e industriais - Projeto e execução 14 EDIFICAÇÕES  NBR 05675 1980 Recebimento de servicos de engenharia e arquitetura  NBR 05717 1982 Espaco modular para escadas  NBR 05719 1982 Revestimentos  NBR 05720 1982 coberturas  NBR 07678 1983 Segurança em obras  NBR 09050 2004 Acessibilidade a edificações, mobiliário, espaços e equipamentos urbanos  NBR 09050 1994 Acessibilidade de pessoas portadoras de deficiências a edificações, espaço, mobiliário e equipamento urbanos  NBR 12219 1992 Elaboração De Caderno De Encargos Para Execução De Edificações  NBR 12721 2005 Avaliação de custos unitários e preparo de orçamento de construção para incorporação de edifícios em condomínio - procedimento  NBR 12722 1992 Discriminação de Serviços para a Construção Civil  NBR 13532 1995 Elaboração de Projetos de edificações-Arquitetura  NBR 14645-1 2000 Elaboração do “como construído” (as built) para edificações  NBR 14718 2001 Guarda-corpo para edificação Elaborado por: Analisado por: Professor : Marcelo Gandra Falcone Alessandra Aparecida Vieira Marcelo Gandra Falcone QUANDO IMPRESSO CONSIDERAR PIRATARIA - CÓPIA NÃO AUTORIZADA
  • 388.
    UNINOVE Rev. B Engenharia deAvaliações e Perícias Manutenção Predial e Avaliação de Máquinas e Equipamentos 16/07/2011 Folha 388/424 15 EDITORAÇÃO CIENTÍFICA  NBR 06023 2002 Informação e documentação - Referências - Elaboração  NBR 06024 2002 Informação e documentação - Numeração progressiva das seções de um documento escrito  NBR 06027 2003 Informação e documentação - Sumário  NBR 06028 2003 Informação e documentação - Resumo  NBR 06823 2002 Informação e documentação - Referências  NBR 10520 2002 Informação e documentação - Citações em documentos  NBR 10719 1989 Apresentação de relatórios técnico-científicos: Procedimento  NBR 14724 2002 Informação e documentação - Trabalhos Academicos  NBR 15287 2005 Informação e documentação - Projeto de pesquisa: Apresentação 16 ELÉTRICA  NBR 5354 Requisitos gerais para material de instalações elétricas  NBR 5382 Verificação de iluminância de interiores  NBR 5410 Instalações elétricas de baixa tensão  NBR 5413 Iluminância de Interiores  NBR 5419 Proteção de estruturas contra descargas atmosféricas  NBR 5444 Símbolos gráficos para instalações elétricas prediais  NBR 5456 Eletricidade geral – Terminologia  NBR 5461 Iluminação  NBR 6146 - 1980 - Invólucro de equipamentos elétricos  NBR 8222 - 1983 - Proteção Contra Incêndio Em Transformadores Elaborado por: Analisado por: Professor : Marcelo Gandra Falcone Alessandra Aparecida Vieira Marcelo Gandra Falcone QUANDO IMPRESSO CONSIDERAR PIRATARIA - CÓPIA NÃO AUTORIZADA
  • 389.
    UNINOVE Rev. B Engenharia deAvaliações e Perícias Manutenção Predial e Avaliação de Máquinas e Equipamentos 16/07/2011 Folha 389/424  NBR 8837 Iluminação esportiva  NBR 12523 Símbolos gráficos de equipamentos de manobra e controle e de dispositivos de proteção  NBR 13418 01--1995 Cabos resistentes ao fogo para instalações de segurança  NBR 13534 01- 1995 Instalações elétricas em estabelecimentos assistenciais de saúde – Requisitos para segurança  NBR 13570 Instalações elétricas em locais de afluência de público – requisitos específicos  NBR 13571 01- 1996 Haste de aterramento aço-cobreada e acessórios  NBR 13859 - 1997 - Protecao contra incendio em subestacoes e  NBR 14039 31- 2005 Instalações elétricas de média tensão de 1,0 kV a 36,2 kV 17 ELEVADORES  NBR 5665 Cálculo de tráfego nos elevadores – procedimento  NBR 10098/87 – PB670 – Elevadores elétricos – Dimensões e condições do projeto de construção  NBR 10982/90 – PB1448 – Elevadores elétricos – Dispositivos de operação e sinalização  NBR 12892/93 – Projeto, fabricação e instalação de elevador unifamiliar.  NBR 13994/00 – Elevadores de passageiros – elevadores para transporte de pessoa com deficiência.  NBR NM 196 - 1999 - Elevadores de passageiros e monta-cargas  NBR NM 207 - 1999 - Elevadores eletricos de passageiros - Re  NBR NM 267 - 2002 - Elevadores Hidraulicos De Passageiros -  NBR NM 272 - 2002 - Seguranca de Maquinas - Protecoes - Req Elaborado por: Analisado por: Professor : Marcelo Gandra Falcone Alessandra Aparecida Vieira Marcelo Gandra Falcone QUANDO IMPRESSO CONSIDERAR PIRATARIA - CÓPIA NÃO AUTORIZADA
  • 390.
    UNINOVE Rev. B Engenharia deAvaliações e Perícias Manutenção Predial e Avaliação de Máquinas e Equipamentos 16/07/2011 Folha 390/424 18 EQUIPAMENTO URBANO  NBR 9283 Mobiliário urbano – classificação  NBR 9284 Equipamento urbano – classificação 19 ESGOTO  NBR 07229 1993 Projeto, construção e operação de sistemas de tanques sépticos  NBR 08160 1999 Sistemas prediais de esgoto sanitário - Projeto e execução  NBR 09649 1986 Projeto De Redes De Esgoto sanitário  NBR 10844 1989 Instalacoes Prediais De Aguas Pluviais 20 ESTADIOS / GINÁSIOS ESPORTIVOS  NBR 8837 Iluminação esportiva  NBR15476 Móveis plásticos - Assentos plásticos para estádios desportivos e lugares públicos não cobertos 21 ESTRUTURAS DE AÇO  NBR 05008 1981 Chapas Grossas de Aço de Baixa Liga e Alta Resistência Mecânica, Resistentes à Corrosão Atmosférica, para Usos Estruturais  NBR 05920 1988 Chapas Finas a Frio de Aço de Baixa Liga, Alta Resistência Mecânica e Resistência a Corrosão Atmosférica, para Usos Estruturais  NBR 06648 1984 Chapas Grossas de Aço-carbono para Uso Estrutural  NBR 06649 1986 Chapas Finas a Frio de Aço-carbono para Uso Estrutural  NBR 06650 1986 Chapas Finas a Quente de Aço-carbono para Uso Estrutural  NBR 06657 1979 Perfil de Estruturas Soldadas de Aço Elaborado por: Analisado por: Professor : Marcelo Gandra Falcone Alessandra Aparecida Vieira Marcelo Gandra Falcone QUANDO IMPRESSO CONSIDERAR PIRATARIA - CÓPIA NÃO AUTORIZADA
  • 391.
    UNINOVE Rev. B Engenharia deAvaliações e Perícias Manutenção Predial e Avaliação de Máquinas e Equipamentos 16/07/2011 Folha 391/424  NBR 07007 1981 Aços para Perfis Laminados para Uso Estrutural  NBR 08261 1983 Perfil Tubular, de Aço-Carbono, Formato a Frio, com e sem Costura, de Seção Circular, Quadrada ou Retangular para Usos Estruturais  NBR 08800 1986 Projeto e execução de estruturas de aço de edifícios (Método dos estados limites)  NBR 09608 1986 Aços para construção - Série padronizada  NBR 09763 1986 Aços para Perfis Laminados, Chapas Grossas e Barras, Usados em Estruturas Fixas  NBR 09971 1987 Elementos de fixação dos componentes das estruturas metálicas  NBR 11851 1991 Chapas de Aço Acalmado de Alta Resistência Mecânica com Requisitos de Tenacidade, para Estruturas soldadas  NBR 12624 1992 Perfil de Elastômero Vulcanizado, Extrudado para Vedação de Junta de Dilatação de Estruturas de Concreto ou Aço - Especificação  NBR 14323 1999 Dimensionamento de estrururas de aço e mistas em edificaçoes em risco de incendio 22 FUNDAÇÕES  NBR 09061 1985 Segurança de escavação a céu aberto  NBR 06122 1996 Projeto e execução de fundações  NBR 06484 2001 Solo - sondagens de simples reconhecimento com SPT - método de ensaio  NBR 08036 1983 Programação de sondagens de simples reconhecimento dos solos para fundações de edifícios  NBR 11682 2006 Estabilidade de encostas Elaborado por: Analisado por: Professor : Marcelo Gandra Falcone Alessandra Aparecida Vieira Marcelo Gandra Falcone QUANDO IMPRESSO CONSIDERAR PIRATARIA - CÓPIA NÃO AUTORIZADA
  • 392.
    UNINOVE Rev. B Engenharia deAvaliações e Perícias Manutenção Predial e Avaliação de Máquinas e Equipamentos 16/07/2011 Folha 392/424  NBR 12131 2005 Estacas – Prova de carga estática – Método de ensaio  NBR 13208 2006 Estacas – Ensaio de carregamento dinâmico 23 GÁS  NBR 12727 1993 Medidor de gás tipo diafragma, para instalações residenciais Dimensões  NBR 13103 2000 Adequação de ambientes residenciais para instalação de aparelhos que utilizam gás combustível  NBR 13127 1994 Medidor de gás tipo diafragma, para instalações residenciais  NBR 13206 1994 Tubo de cobre leve, médio e pesado sem costura, para condução de água e outros fluidos  NBR 13523 1995 Central predial de Gás Liquefeito de petróleo (GLP) - Projeto e execução  NBR 13932 1997 Instalações internas de gás liquefeito de petróleo (GLP) - Projeto e execução  NBR 13933 1997 Instalações internas de gás natural (GN) - Projeto e execução 24 HIDRÁULICA  NBR 05626 1998 Instalação Predial de Água Fria  NBR 07198 1993 Projeto e execução de instalações prediais de água quente 25 IMPERMEABILIZAÇÃO  NBR 0803 1983 Materiais e Sistemas utilizados em impermeabilização terminologia Elaborado por: Analisado por: Professor : Marcelo Gandra Falcone Alessandra Aparecida Vieira Marcelo Gandra Falcone QUANDO IMPRESSO CONSIDERAR PIRATARIA - CÓPIA NÃO AUTORIZADA
  • 393.
    UNINOVE Rev. B Engenharia deAvaliações e Perícias Manutenção Predial e Avaliação de Máquinas e Equipamentos 16/07/2011  NBR 09574 1996 Execução de Impermeabilização  NBR 09575 1998 Elaboração de Projetos de Impermeabilização  Folha 393/424 NBR 09686 2006 Solução asfáltica empregada como imprimação da impermeabilização  NBR 09689 1986 Materiais e sistemas para impermeabilização- Classificação  NBR 09690 NBR 09952 2007 Manta asfáltica com armadura para impermeabilização- Requisitos e métodos de ensaio  NBR 12190 2001 Seleção da Impermeabilização 26 INSPEÇÃO E MANUTENÇÃO PREDIAL  MB-130 1955 Inspeção periódica de elevadores e monta-cargas  NBR 10821 2000 Caixilho para Edificação – Janela  NBR 05419 2001 Proteção de estruturas contra descargas atmosféricas  NBR 05580 1993 Tubos de aço-carbono para rosca Whitworth gás para usos comuns na condução de fluidos  NBR 05583 1982 Tubo de aço de baixo carbono, sem costura, trefilado a frio, para permutadores de calor  NBR 05674 1999 Manutenção de edificações - Procedimento  NBR 06414 2000 Rosca para tubos onde a vedação e feita pela rosca - Designação, dimensões e tolerâncias  NBR 06493 1994 Emprego de cores para identificação de tubulações  NBR 06675 1993 Instalação de condicionadores de ar de uso doméstico (tipo monobloco ou modular) Elaborado por: Analisado por: Professor : Marcelo Gandra Falcone Alessandra Aparecida Vieira Marcelo Gandra Falcone QUANDO IMPRESSO CONSIDERAR PIRATARIA - CÓPIA NÃO AUTORIZADA
  • 394.
    UNINOVE Engenharia de Avaliaçõese Perícias Manutenção Predial e Avaliação de Máquinas e Equipamentos  Rev. B 16/07/2011 Folha 394/424 NBR 06925 1995 Conexão de ferro fundido maleável classes 150 e 300, com rosca NPT para tubulação  NBR 06943 2000 Conexões de ferro fundido maleável, com rosca NBR NM-ISO 71, para tubulações  NBR 07200 1998 Execução de revestimento de paredes e tetos de argamassas inorgânicas - Procedimento  NBR 07202 2000 Desempenho de janelas de alumínio em edificação de uso residencial e comercial  NBR 07532 2000 Identificadores de extintores de incêndio - Dimensões e cores  NBR 07541 1982 Tubo de cobre sem costura para refrigeração e ar condicionado  NBR 09050 1994 Acessibilidade de pessoas portadoras de deficiências a edificações, espaço, mobiliário e equipamento urbanos  NBR 09077 2001 Saidas de emergencia em edificios  NBR 10818 1989 Qualidade de Água de Piscina  NBR 10829 1989 Caixilho para edificação - janela - Medição da atenuação acústica  NBR 10831 1989 Projeto e utilização de caixilhos para edificações de uso residencial e comercial - Janelas  NBR 11173 1990 Projeto e Execução de Argamassa Armada  NBR 11720 1994 Conexões para unir tubos de cobre por soldagem ou brasagem capilar  NBR 12179 1992 Tratamento acústico em recintos fechados  NBR 12912 1993 Rosca NPT para Tubos – Dimensões Elaborado por: Analisado por: Professor : Marcelo Gandra Falcone Alessandra Aparecida Vieira Marcelo Gandra Falcone QUANDO IMPRESSO CONSIDERAR PIRATARIA - CÓPIA NÃO AUTORIZADA
  • 395.
    UNINOVE Engenharia de Avaliaçõese Perícias Manutenção Predial e Avaliação de Máquinas e Equipamentos  Rev. B 16/07/2011 Folha 395/424 NBR 13971 1986 Sistemas de Refrigeração, Condicionamento de Ar e Ventilação – Manutenção Programada  NBR 14024 1997 Centrais prediais e industriais de gás liquefeito de petróleo (GLP) – Sistema de abastecimento a granel  NBR 14037 1998 Manual de Operação Uso e Manutenção das Edificações  NBR 14712 Elevadores Elétricos – Elevadores de carga, monta cargas e elevadores de marca – Requisitos de segurança para projeto, fabricação e instalação  NBR 14718 Guarda-corpo para edificação 27 MANUTENÇÃO  NBR 5674 01-set-99 Manutenção de edificações Procedimento  NBR 14037 01-mar-98 Manual de operação, uso e manutenção das edificações Conteúdo e recomendações para elaboração e apresentação 28 PERÍCIAS EM ENGENHARIA CIVIL  NBR 13752 1996 Perícias de engenharia na construção civil  NBR 10719 1989 Apresentação de relatórios técnicos 29 PLAYGROUND / CIRCOS E PARQUES  NBR 14350-1 - 1999 Segurança de brinquedos de playground - Parte 1: Requisitos e métodos de ensaio 30 PONTES  NBR-07187 1986 Projeto e Execução de Pontes de Concreto Armado e Protendido  NBR-07421 1976 Ponte Viaduto Ferroviário-Fundação-Execução  NBR-09452 1986 Vistorias de Pontes e Viadutos de Concreto Elaborado por: Analisado por: Professor : Marcelo Gandra Falcone Alessandra Aparecida Vieira Marcelo Gandra Falcone QUANDO IMPRESSO CONSIDERAR PIRATARIA - CÓPIA NÃO AUTORIZADA
  • 396.
    UNINOVE Rev. B Engenharia deAvaliações e Perícias Manutenção Predial e Avaliação de Máquinas e Equipamentos 16/07/2011 Folha 396/424 31 PORTA  NBR 8037 01-jun-83 Porta de madeira de edificação  NBR 8052 Porta de madeira de edificações – Dimensões - Padronização  NBR 8542 01-set-86 Desempenho de porta de madeira de edificação 32 SEGURANÇA CONTRA INCÊNDIO  NBR 5419 Proteção de estruturas contra descargas atmosféricas  NBR 6135 - 1992 Chuveiros automáticos para extinção de incêndio Especificação  NBR 6479 - 1992 Portas e vedadores Determinação da resistência ao fogo  NBR 7195 Cores para segurança  NBR 7679 Termos básicos relativos à cor – terminologia  NBR 8681 Ações e segurança nas estruturas – procedimento  NBR 9077 Saídas de emergência em edifícios  NBR 17240 - 10 Execução de sistemas de detecção e alarme de incêndio Procedimento  NBR 10898 Sistema de Iluminação de emergência  NBR 11742 Porta corta-fogo para saída de emergência – especificação  NBR 11785 Barra Antipânico – Requisitos  NBR 11836 Detectores de automáticos de fumaça para proteção contra incêndio  NBR 12615 Sistema de combate a incêndio por espuma - procedimento  NBR 12693 Sistemas de proteção por extintores de incêndio – procedimento  NBR 13434-1 - 2004 Sinalização de segurança contra incêndio e pânico - Parte 1: Princípios de projeto  NBR 13434-2 – 2004 - Sinalização de segurança contra incêndio e pânico - Parte 2: Símbolos e suas formas, dimensões e cores Elaborado por: Analisado por: Professor : Marcelo Gandra Falcone Alessandra Aparecida Vieira Marcelo Gandra Falcone QUANDO IMPRESSO CONSIDERAR PIRATARIA - CÓPIA NÃO AUTORIZADA
  • 397.
    UNINOVE Rev. B Engenharia deAvaliações e Perícias Manutenção Predial e Avaliação de Máquinas e Equipamentos 16/07/2011 Folha 397/424  NBR 13434-3 – 2005 - Sinalização de segurança contra incêndio e pânico - Parte 3: Requisitos e métodos de ensaio  NBR 13714 Sistemas de hidrantes e de mangotinhos para combate a incêndio  NBR 13768 01- 1997 Acessórios destinados à porta corta-fogo para saída de emergência – Requisitos  NBR 13792 Proteção contra incêndio por sistema de chuveiros automáticos para áreas de armazenamento em geral – procedimento  NBR 13848 Acionador manual para utilização em sistemas de detecção e alarme de incêndio  NBR 14100 Proteção contra incêndio – símbolos gráficos para projetos  NBR 14432 Exigências de resistência ao fogo de elementos construtivos de edificações - procedimento  NBR 14718 01 - 2001 Guarda-corpos para edificação  NBR 14880 Saídas de emergência em edifícios- escadas de segurança – controle de fumaça por pressurização 33 SCI - EQUIPAMENTOS / MATERIAIS / SINALIZAÇÃO DE COMBATE A INCÊNDIO  NBR 05667 - 1980 - Hidrantes Urbanos de Incêndio  NBR 05719 - 1982 - Nb 343 - Revestimentos  NBR 06125 - 1992 - chuveiros automaticos para extincao de in  NBR 06135 - 1992 - Chuveiros Automáticos para Extinção de In  NBR 06493 - 1994 - Emprego de cores para identificação de tubulações  NBR 07195 - 1995 - Cores para segurança  NBR 07532 - 1982 - PB 956 - Identificadores de extintores de  NBR 08655 - 1990 - Po para extincao de incendio - Determinac  NBR 08657 - 2003 - Po para extincao de incendio - Determinac Elaborado por: Analisado por: Professor : Marcelo Gandra Falcone Alessandra Aparecida Vieira Marcelo Gandra Falcone QUANDO IMPRESSO CONSIDERAR PIRATARIA - CÓPIA NÃO AUTORIZADA
  • 398.
    UNINOVE Rev. B Engenharia deAvaliações e Perícias Manutenção Predial e Avaliação de Máquinas e Equipamentos 16/07/2011  NBR 08660 - 1984 - Revestimento_De_Piso_  NBR 08674 - 1984 - Execução de Sistemas Fixos Automáticosd  NBR 08681 - 2003 - NB 862 - Ações e segurança nas estruturas  NBR 09443 - 2002 - Extintor de incendio classe A - Ensaio de  NBR 09444 - 2002 - Extintor de incendio classe B - Ensaio de  NBR 09654 - 1997 - Indicador de pressao para extintores de i  NBR 09694 - 1992 - Po para extincao de incendio - Verificação  NBR 09695 - 2003 - Pó para Extinção de Incêndio  NBR 09696 - 1992 - Po para extincao de incendio - Analise gr  NBR 09715 - 1987 - Mangueira de Incêndio para Uso Naval  NBR 09077 - 2001 - Saidas de emergencia em edificios  NBR 17240 - 2010 - Execução de Sistemas de Detecção e Alarme  NBR 09442 - 1986 - Determinacao_do_indice_de_propagacao_supe  NBR 10636 - 1989 - Paredes divisórias - Resistencia contra f  NBR 10721 - 2005 - Extintores de Incêndio com Carga de Pó  NBR 10830 - 1989 - Tb 355 - Caixilho Para Edificacao - Acust  NBR 10866 - 1989 - Portas classe A e B construcao naval Ensa  NBR 10897 - 2004 - Proteção Contra Incêndio por Chuveiro Aut  NBR 10898 - 1999 - Sistema de Iluminação de Emergência  NBR 11711 - 2003 - Portas e Vedadores Corta-fogo com Núcleo  NBR 11715 - 2003 - Extintores de Incêndio com Carga de Água  Folha 398/424 NBR 11716 - 2004 - Extintores de Incêndio com Carga de CO2 Elaborado por: Analisado por: Professor : Marcelo Gandra Falcone Alessandra Aparecida Vieira Marcelo Gandra Falcone QUANDO IMPRESSO CONSIDERAR PIRATARIA - CÓPIA NÃO AUTORIZADA
  • 399.
    UNINOVE Rev. B Engenharia deAvaliações e Perícias Manutenção Predial e Avaliação de Máquinas e Equipamentos 16/07/2011 Folha 399/424  NBR 11742 - 2003 - Porta corta-fogo para saida de emergencia  NBR 11742 - 2003 - Porta Corta-Fogo Para Saída De Emergência  NBR 11742 - 2003 - Artigo simcol -EB 132 GB 920 - Porta corta-fogo  NBR 11751 - 2003 - Extintor de Incêndio com Carga para Espum  NBR 11762 - 2001 - Extintores de Incêndio Portateis com Carg  NBR 11836 - 1992 - Detectores Automaticos De Fumaca Para Pro  NBR 11861 - 1998 - Mangueiras de incendio  NBR 11983 - 1990 - Po para extincao de incendio - Determinac  NBR 11986 - 2003 - Po Para Extincao De Incendio - Determinac  NBR 11989 - 2003 - Po para extincao de incendio - Determinac  NBR 12178 - 1992 - Dispositivos de Segurança no Recipiente d  NBR 12252 - 1992 - NB 1329 - Tatica de salvamento e combate  NBR 12285 - 1992 - NB 1369 - Protecao contra incendio em dep  NBR 12313 - 2000 - NB 1397 - Sistema de Combustao - Controle  NBR 12517 - 1993 - Simbolos Graficos para Projetos de Contro  NBR 12615 - 1992 - NB 966 - Sistema de combate a incendio po  NBR 12693 - 1993 - Sistemas de protecao por extintores de in  NBR 12694 - 1992 - Especificacao De Cores De Acordo Com O Si  NBR 12710 - 2001 - Protecao contra incendio por extintores n  NBR 12779 - 2004 - Inspecao Manutencao E Cuidados Em Manguei  NBR 12779 - 2004 - Mangueiras incendio Inspecao Manutencao c  NBR 12921 - 1993 - Veiculo Ferroviario - Prevencao contra in  NBR 12962 - 1998 - Inspeção, Manutenção e Recarga em Extinto Elaborado por: Analisado por: Professor : Marcelo Gandra Falcone Alessandra Aparecida Vieira Marcelo Gandra Falcone QUANDO IMPRESSO CONSIDERAR PIRATARIA - CÓPIA NÃO AUTORIZADA
  • 400.
    UNINOVE Rev. B Engenharia deAvaliações e Perícias Manutenção Predial e Avaliação de Máquinas e Equipamentos 16/07/2011  NBR 12992 - 1993 - Extintor de incendio classe C - Ensaio de  NBR 13418 - 1995 - Cabos Resistentes Ao Fogo Para Instalacoe  NBR 13419 - 2001 - Mangueira de borracha para conducao de ga  NBR 13428 - 1995 - Mangueira De Borracha Para Conducao De Ga  NBR 13434 - 1995 - Sinalizacao de seguranca contra incendio  NBR 13434-1 - 2004 - Sinalização de segurança contra incêndi  NBR 13434-2 - 2004 - Simbolos de sinalizacao de seguranca co  NBR 13435 - 1995 - Sinalizacao De Seguranca Contra Incendio  NBR 13437 - 1995 - Simbolos graficos para sinalizacao contra  NBR 13485 - 1998 - Manutencao De Terceiro Nivel (Vistoria) E  NBR 13697 - 1996 - Equipamentos De Proteção Respiratória - F  NBR 13714 - 2000 - Sistemas de Hidrantes e de Mangotinhos pa  NBR 13768 - 1997 - Porta Corta-Fogo de Emergência  NBR 13792 - 1997 - Protecao contra incendio por sistema de c  NBR 13848 - 1997 - Acionador manual para utilizacao em siste  NBR 13860 - 1997 - Glossario De Termos Relacionados Com A Se  NBR 13902 - 1997 - Vagao de combate a incendio - Equipamento  NBR 14023 - 1997 - Registro de atividades de bombeiros  NBR 14096 - 1998 - Viaturas de combate a incendio  NBR 14100 - 1998 - Protecao Contra Incendio - Simbolos Grafi  NBR 14276 - 1999 - Programa de Brigada de Incêndio  Folha 400/424 NBR 14277 - 1999 - Campo para treinamento de combate a incên Elaborado por: Analisado por: Professor : Marcelo Gandra Falcone Alessandra Aparecida Vieira Marcelo Gandra Falcone QUANDO IMPRESSO CONSIDERAR PIRATARIA - CÓPIA NÃO AUTORIZADA
  • 401.
    UNINOVE Rev. B Engenharia deAvaliações e Perícias Manutenção Predial e Avaliação de Máquinas e Equipamentos 16/07/2011  NBR 14323 - 2003 - Estruturas de Aço e Aço-Concreto em Situa  NBR 14432 - 2001 - Exigencias De Resistencia Ao Fogo De Elem  NBR 14608 - 2000 - Bombeiro Profissional Civil  Folha 401/424 NBR 14870 - 2002 - Esguichos de jato regulavel para combate 34 TANQUES E BOMBAS  NBR 13212 - 2004 - Posto de Serviço - Tanque Atmosférico Sub  NBR 13313 - 2003 - Tanque atmosferico subterraneo em postos aço  NBR 14024 - Centrais prediais e industriais de gás liquefeito de petróleo - sistema de abastecimento a granel.  NBR 13781 - 2001 - Posto de servico - Manuseio e instalacao  NBR 13785 - 2003 - Construcao De Tanque Atmosferico Subterrâneo duplo  NBR 13786 - 2005 - Posto De Servico - Selecao De Equipamento  NBR 13787 - 1997 - Controle De Estoque Dos Sistemas De Armazenamento  NBR 14536 – 2000 - Registros para recipientes transportáveis para 20kg de GLP  NBR 14639 - 2001 - Posto De Serviço - Instalações Elétricas  NBR 15526 - Redes de distribuição interna para gases combustíveis em instalações residenciais e comerciais - Projeto e execução  NBR 15358 - Redes de distribuição para gases combustíveis em instalações comerciais e industriais - Projeto e execução  NBR 17505-1_6 - 2006 - Completa - Armazenamento em tanques  NBR 17505-1-2006 - Armazenamento de Liquidos inflamáveis e combustíveis  NBR 17505-2-2006 - Armazenamento em tanques e em vasos  NBR 17505-3-2006 - Armazenamento em tanques e em vasos  NBR 17505-4-2006 - Armazenamento em tanques e em vasos Elaborado por: Analisado por: Professor : Marcelo Gandra Falcone Alessandra Aparecida Vieira Marcelo Gandra Falcone QUANDO IMPRESSO CONSIDERAR PIRATARIA - CÓPIA NÃO AUTORIZADA
  • 402.
    UNINOVE Rev. B Engenharia deAvaliações e Perícias Manutenção Predial e Avaliação de Máquinas e Equipamentos 16/07/2011  NBR 17505-5-2006 - Armazenamento em tanques e em vasos  Folha 402/424 NBR 17505-6-2006 - Armazenamento em tanques e em vasos 35 TELEFONES   NBR 14565 2000 Procedimento básico para elaboração de projetos de cabeamento de telecomunicações para rede interna estruturada NBR 13300 1995 Redes telefônicas internas em prédios 36 VENTO  NBR 06123 1987 Forças Devidas ao Vento em Edificações Elaborado por: Analisado por: Professor : Marcelo Gandra Falcone Alessandra Aparecida Vieira Marcelo Gandra Falcone QUANDO IMPRESSO CONSIDERAR PIRATARIA - CÓPIA NÃO AUTORIZADA
  • 403.
    UNINOVE Rev. B Engenharia deAvaliações e Perícias Manutenção Predial e Avaliação de Máquinas e Equipamentos 16/07/2011 Folha 403/424 APENDICE 3 - CORPO DE BOMBEIROS Instruções técnicas do Corpo de Bombeiros da Polícia Militar do Estado de São Paulo referentes à segurança contra incêndio. 1 – Instruções técnicas. - DECRETO Nº 46.076, DE 31 DE AGOSTO DE 2001. Institui o Regulamento de Segurança contra Incêndio das edificações e áreas de risco para os fins da Lei nº 684, de 30 de setembro de 1975 e estabelece outras providências - Lei Nº 10.318, de 27 de maio de 1999 (Projeto de lei nº 360/97, do Deputado Reynaldo de Barros Filho - PPB) Obriga a divulgação e aplicação de condições mínimas de segurança em locais de reunião e dá outras providências As IT´s devem ser consultadas no “SITE” de “INTERNET” do Corpo de Bombeiros da Policia Militar do Estado de São Paulo: http://www.ccb.polmil.sp.gov.br/its/instrucao_tec.htm 2. Relação das instruções técnicas. 2.1. INSTRUÇÃO TÉCNICA Nº 01 - Procedimentos Administrativos:(formulários, atestados, etc.) 2.2. INSTRUÇÃO TÉCNICA Nº 02 - Conceitos básicos de segurança contra incêndio 2.3. INSTRUÇÃO TÉCNICA Nº 03 - Terminologia de segurança contra incêndio 2.4. INSTRUÇÃO TÉCNICA Nº 04 - Símbolos gráficos para projeto de segurança contra incêndio 2.5. INSTRUÇÃO TÉCNICA Nº 05 - Segurança contra incêndio – urbanística 2.6. INSTRUÇÃO TÉCNICA Nº 06 – Acesso de viatura na edificação e área de risco 2.7. INSTRUÇÃO TÉCNICA Nº 07 – Separação entre edificações 2.8. INSTRUÇÃO TÉCNICA Nº 08 – Segurança estrutural nas edificações (resistência ao fogo dos elementos de construção) Elaborado por: Analisado por: Professor : Marcelo Gandra Falcone Alessandra Aparecida Vieira Marcelo Gandra Falcone QUANDO IMPRESSO CONSIDERAR PIRATARIA - CÓPIA NÃO AUTORIZADA
  • 404.
    UNINOVE Rev. B Engenharia deAvaliações e Perícias Manutenção Predial e Avaliação de Máquinas e Equipamentos 16/07/2011 Folha 404/424 2.9. INSTRUÇÃO TÉCNICA Nº 09 – Compartimentação horizontal e compartimentação vertical 2.10. INSTRUÇÃO TÉCNICA Nº 10 – Controle de materiais de acabamento e revestimento 2.11. *INSTRUÇÃO TÉCNICA Nº 11 – Saídas de emergência 2.12. *INSTRUÇÃO TÉCNICA Nº 12 – Dimensionamento de lotação e saídas de emergência em centros esportivos e de exibição 2.13. INSTRUÇÃO TÉCNICA Nº 13 – Pressurização de escada de segurança 2.14. INSTRUÇÃO TÉCNICA Nº 14 – Carga de incêndio nas edificações e áreas de risco 2.15. INSTRUÇÃO TÉCNICA Nº 15 – Controle de fumaça 2.16. INSTRUÇÃO TÉCNICA Nº 16 – Plano de intervenção de incêndio 2.17. *INSTRUÇÃO TÉCNICA Nº 17 – Brigada de incêndio 2.18. INSTRUÇÃO TÉCNICA Nº 18 – Iluminação de emergência 2.19. INSTRUÇÃO TÉCNICA Nº 19 – Sistemas de detecção e alarme de incêndio 2.20. INSTRUÇÃO TÉCNICA Nº 20 – Sinalização de emergência 2.21. *INSTRUÇÃO TÉCNICA Nº 21 – Sistema de proteção por extintores de incêndio 2.22. INSTRUÇÃO TÉCNICA Nº 22 – Sistema de hidrantes e de mangotinhos para combate a incêndio 2.23. INSTRUÇÃO TÉCNICA Nº 23 – Sistema de chuveiros automáticos 2.24. INSTRUÇÃO TÉCNICA Nº 25 – Sistema de proteção por espuma 2.25. INSTRUÇÃO TÉCNICA Nº 26 – Sistema fixo de gases para combate a incêndio 2.26. INSTRUÇÃO TÉCNICA Nº 27 – Armazenagem de líquidos inflamáveis e combustíveis 2.27. INSTRUÇÃO TÉCNICA Nº 28 – Manipulação, armazenamento, comercialização e utilização de gás liquefeito de petróleo (GLP) Elaborado por: Analisado por: Professor : Marcelo Gandra Falcone Alessandra Aparecida Vieira Marcelo Gandra Falcone QUANDO IMPRESSO CONSIDERAR PIRATARIA - CÓPIA NÃO AUTORIZADA
  • 405.
    UNINOVE Rev. B Engenharia deAvaliações e Perícias Manutenção Predial e Avaliação de Máquinas e Equipamentos 16/07/2011 Folha 405/424 2.28. INSTRUÇÃO TÉCNICA Nº 29 – Comercialização, distribuição e utilização de gás natural 2.29. INSTRUÇÃO TÉCNICA Nº 30 - Fogos de artifício 2.30. INSTRUÇÃO TÉCNICA Nº 31 - Heliponto e heliporto 2.31. INSTRUÇÃO TÉCNICA Nº 32 - Produtos perigosos em edificação e área de risco 2.32. INSTRUÇÃO TÉCNICA Nº 33 - Cobertura de sapé, piaçava e similares 2.33. INSTRUÇÃO TÉCNICA Nº 34 - Hidrante urbano 2.34. INSTRUÇÃO TÉCNICA Nº 37 - Subestações elétrica 2.35. INSTRUÇÃO TÉCNICA Nº 38 - Segurança contra incêndio em cozinha profissional Elaborado por: Analisado por: Professor : Marcelo Gandra Falcone Alessandra Aparecida Vieira Marcelo Gandra Falcone QUANDO IMPRESSO CONSIDERAR PIRATARIA - CÓPIA NÃO AUTORIZADA
  • 406.
    UNINOVE Rev. B Engenharia deAvaliações e Perícias Manutenção Predial e Avaliação de Máquinas e Equipamentos 16/07/2011 Folha 406/424 APENDICE 4 – NR´s DO MTE NR-1 - DISPOSIÇÕES GERAIS As NR são de observância obrigatória pelas empresas privadas e públicas e pelos órgãos públicos de administração direta e indireta, que possuam empregados regidos pela Consolidação das Leis do Trabalho - CLT. Importância e funções do S S S T Funções e competência da D R T. NR-2 - INSPEÇÃO PRÉVIA Todo estabelecimento novo, antes de iniciar suas atividades, deverá solicitar aprovação de suas instalações ao Órgão do Ministério do Trabalho. NR-3 - EMBARGO E INTERDIÇÃO A D R T ou D T M, conforme o caso, à vista de laudo técnico do serviço competente que demonstre grave e iminente risco para o trabalhador, poderá interditar estabelecimento, setor de serviço, máquina ou equipamento, ou embargar a obra. NR-4 - SERVIÇO ESPECIALIZADO Empresas privadas ou públicas, que possuam empregados regidos pela CLT, manterão obrigatoriamente Serviços Especializados em Engenharia de Segurança e em Medicina do Trabalho, com a finalidade de promover a saúde e proteger a integridade do trabalhador no local de trabalho, vinculados à graduação do risco da atividade principal e do número total de empregados do estabelecimento. NR-5 - Comissão Interna de Prevenção de Acidentes As empresas privadas, públicas e órgãos governamentais que possuam empregados regidos pela CLT ficam obrigados a organizar e manter em funcionamento, por estabelecimento, uma Comissão Interna de Prevenção de Acidentes - CIPA. NR-6 - EQUIPAMENTOS DE PROTEÇÃO INDIVIDUAL Para os fins de aplicação desta NR, considera-se EPI todo dispositivo de uso individual, de fabricação nacional ou estrangeira, destinado a proteger a saúde e a integridade física do trabalhador. A empresa é obrigada a fornecer aos empregados gratuitamente. NR-7 - EXAMES MÉDICOS Esta NR estabelece a obrigatoriedade da elaboração e implementação, por parte de todos os empregadores e instituições que admitam trabalhadores como empregados, do Programa de Controle Médico de Saúde Ocupacional - PCMSO, cujo objetivo é promover e preservar a saúde do conjunto dos seus trabalhadores. NR-8 - EDIFICAÇÕES Esta NR estabelece requisitos técnicos mínimos que devam ser observados nas edificações para garantir segurança e conforto aos que nelas trabalham. Elaborado por: Analisado por: Professor : Marcelo Gandra Falcone Alessandra Aparecida Vieira Marcelo Gandra Falcone QUANDO IMPRESSO CONSIDERAR PIRATARIA - CÓPIA NÃO AUTORIZADA
  • 407.
    UNINOVE Rev. B Engenharia deAvaliações e Perícias Manutenção Predial e Avaliação de Máquinas e Equipamentos 16/07/2011 Folha 407/424 NR-9 - RISCOS AMBIENTAIS Esta NR estabelece a obrigatoriedade da elaboração e implementação, por parte de todos os empregadores e instituições que admitam trabalhadores como empregados, do Programa de Prevenção de Riscos Ambientais, através da antecipação, reconhecimento, avaliação e conseqüente controle da ocorrência de riscos ambientais existentes ou que venham a existir no ambiente de trabalho. NR-10 - ELETRICIDADE Esta NR fixa as condições mínimas exigidas para garantir a segurança dos empregados que trabalham em instalações elétricas, em suas etapas, incluindo projeto, execução, operação, manutenção, reforma e ampliação e ainda, a segurança de usuários e terceiros. NR-11 - MOVIMENTAÇÃO DE MATERIAIS - ANEXO DA NR-11 Esta NR estabelece normas de segurança para operação de elevadores, guindastes, transportadores industriais e máquinas transportadoras. O armazenamento de materiais deverá obedecer aos requisitos de segurança para cada tipo de material. NR-12 - MÁQUINAS E EQUIPAMENTOS Esta NR estabelece os procedimentos obrigatórios nos locais destinados a máquinas e equipamentos, como piso, áreas de circulação, dispositivos de partida e parada, normas sobre proteção de máquinas e equipamentos, bem como manutenção e operação. NR-13 - CALDEIRAS E VASOS SOB PRESSÃO Esta NR estabelece os procedimentos obrigatórios nos locais onde se situam as caldeiras de qualquer fonte de energia, projeto, acompanhamento de operação e manutenção, inspeção e supervisão de inspeção de caldeiras e vasos de pressão, em conformidade com a regulamentação profissional vigente no País. NR-14 - FORNOS Esta NR estabelece os procedimentos mínimos, fixando construção sólida, revestida com material refratário, de forma que o calor radiante não ultrapasse os limites de tolerância, oferecendo o máximo de segurança e conforto aos trabalhadores. NR-15 - ATIVIDADES E OPERAÇÕES INSALUBRES Esta NR estabelece os procedimentos obrigatórios, nas atividades ou operações insalubres que são executadas acima dos limites de tolerância previstos na Legislação, comprovadas através de laudo de inspeção do local de trabalho. Agentes agressivos: ruído, calor, radiações, pressões, frio, umidade, agentes químicos, etc... NR-16 - ATIVIDADES E OPERAÇÕES PERIGOSAS Esta NR estabelece os procedimentos nas atividades exercidas pelos trabalhadores que manuseiam e/ou transportam explosivos ou produtos químicos, classificados como inflamáveis, substâncias radioativas e serviços de operação e manutenção. NR-17 - ERGONOMIA Elaborado por: Analisado por: Professor : Marcelo Gandra Falcone Alessandra Aparecida Vieira Marcelo Gandra Falcone QUANDO IMPRESSO CONSIDERAR PIRATARIA - CÓPIA NÃO AUTORIZADA
  • 408.
    UNINOVE Rev. B Engenharia deAvaliações e Perícias Manutenção Predial e Avaliação de Máquinas e Equipamentos 16/07/2011 Folha 408/424 Esta NR visa estabelecer parâmetros que permitam a adaptação das condições de trabalho às características psicofisiológicas dos trabalhadores, de modo a proporcionar um máximo de conforto, segurança e desempenho eficiente. NR-17 - ANEXO 1 Trabalho dos Operadores de Checkouts - Arquivo PDF (22kb). NR-17 - ANEXO 2 Trabalho em Teleatendimento / Telemarketing - Arquivo PDF (68kb). NR-18 - OBRAS DE CONSTRUÇÃO, DEMOLIÇÃO E REPAROS Esta NR estabelece diretrizes de ordem administrativa, de planejamento e de organização, que objetivam a implementação de medidas de controle e sistemas preventivos de segurança nos processos, nas condições e no meio ambiente de trabalho na Indústria da Construção. NR-19 - EXPLOSIVOS E ANEXO 1 Esta NR estabelece o fiel cumprimento do procedimento em manusear, transportar e armazenar explosivos. NR-19 - ANEXO 1 Segurança e Saúde na Indústria de Fogos de Artifício e outros Artefatos Pirotécnicos - Arquivo PDF (45kb). NR-20 - LÍQUIDOS COMBUSTÍVEIS E INFLAMÁVEIS Esta NR estabelece a definição para Líquidos Combustíveis, Líquidos Inflamáveis e Gás Liqüefeito de Petróleo, parâmetros para armazenar, como transportar e como devem ser manuseados pelos trabalhadores. NR-21 - TRABALHO A CÉU ABERTO Esta NR estabelece os critérios mínimos para os serviços realizados a céu aberto, sendo obrigatória a existência de abrigos, ainda que rústicos, capazes de proteger os trabalhadores contra intempéries. NR-22 - TRABALHOS SUBTERRÂNEOS Esta NR estabelece sobre Segurança e Medicina do Trabalho em minas, determinando que a empresa adotará métodos e manterá locais de trabalho que proporcionem a seus empregados condições satisfatórias de Segurança e Medicina do Trabalho. NR-23 - PROTEÇÃO CONTRA INCÊNDIOS Esta NR estabelece os procedimentos que todas as empresas devam possuir, no tocante à proteção contra incêndio, saídas de emergência para os trabalhadores, equipamentos suficientes para combater o fogo e pessoal treinado no uso correto. NR-24 - CONDIÇÕES SANITÁRIAS E DE CONFORTO NOS LOCAIS DE TRABALHO Elaborado por: Analisado por: Professor : Marcelo Gandra Falcone Alessandra Aparecida Vieira Marcelo Gandra Falcone QUANDO IMPRESSO CONSIDERAR PIRATARIA - CÓPIA NÃO AUTORIZADA
  • 409.
    UNINOVE Rev. B Engenharia deAvaliações e Perícias Manutenção Predial e Avaliação de Máquinas e Equipamentos 16/07/2011 Folha 409/424 Esta NR estabelece critérios mínimos, para fins de aplicação de aparelhos sanitários, gabinete sanitário, banheiro, cujas instalações deverão ser separadas por sexo, vestiários, refeitórios, cozinhas e alojamentos. NR-25 - RESÍDUOS INDUSTRIAIS Esta NR estabelece os critérios que deverão ser eliminados dos locais de trabalho, através de métodos, equipamentos ou medidas adequadas, de forma a evitar riscos à saúde e à segurança do trabalhador. NR-26 - SINALIZAÇÃO DE SEGURANÇA Esta NR tem por objetivos fixar as cores que devam ser usadas nos locais de trabalho para prevenção de acidentes, identificando, delimitando e advertindo contra riscos. NR-27 - REGISTRO PROFISSIONAL DO TÉCNICO DE SEGURANÇA DO TRABALHO NO MTB Esta NR estabelece que o exercício da profissão depende de registro no Ministério do Trabalho, efetuado pela SSST, com processo iniciado através das DRT. Revogada pela Portaria GM n.º 262, 29/05/2008 Registro Profissional do Técnico de Segurança do Trabalho no MTB NR-28 - FISCALIZAÇÃO E PENALIDADES Esta NR estabelece que Fiscalização, Embargo, Interdição e Penalidades, no cumprimento das disposições legais e/ou regulamentares sobre segurança e saúde do trabalhador, serão efetuados, obedecendo ao disposto nos Decretos Leis. NR-29 - SEGURANÇA E SAÚDE NO TRABALHO PORTUÁRIO Esta NR regulariza a proteção obrigatória contra acidentes e doenças profissionais, alcançando as melhores condições possíveis de segurança e saúde aos trabalhadores, que exerçam atividades nos portos organizados e instalações portuárias de uso privativo e retroportuárias, situadas dentro ou fora da área do porto organizado. NR-30 - SEGURANÇA E SAÚDE NO TRABALHO AQUAVIÁRIO E ANEXO 1 E ANEXO 2 Esta norma aplica-se aos trabalhadores das embarcações comerciais, de bandeira nacional, bem como às de bandeiras estrangeiras, no limite do disposto na Convenção da OIT n.º 147 Normas Mínimas para Marinha Mercante, utilizados no transporte de mercadorias ou de passageiros, inclusive naquelas utilizadas na prestação de serviços, seja na navegação marítima de longo curso, na de cabotagem, na navegação interior, de apoio marítimo e portuário, bem como em plataformas marítimas e fluviais, quando em deslocamento. NR-31 - SEGURANÇA E SAÚDE NO TRABALHO NA AGRICULTURA, PECUÁRIA SILVICULTURA, EXPLORAÇÃO FLORESTAL E AQUICULTURA Esta Norma Regulamentadora tem por objetivo estabelecer os preceitos a serem observados na organização e no ambiente de trabalho, de forma a tornar compatível o planejamento e o desenvolvimento das atividades da agricultura, pecuária, silvicultura, exploração florestal e aqüicultura com a segurança e saúde e meio ambiente do trabalho. NR-32 - SEGURANÇA E SAÚDE NO TRABALHO EM ESTABELECIMENTOS DE SAÚDE Elaborado por: Analisado por: Professor : Marcelo Gandra Falcone Alessandra Aparecida Vieira Marcelo Gandra Falcone QUANDO IMPRESSO CONSIDERAR PIRATARIA - CÓPIA NÃO AUTORIZADA
  • 410.
    UNINOVE Rev. B Engenharia deAvaliações e Perícias Manutenção Predial e Avaliação de Máquinas e Equipamentos 16/07/2011 Folha 410/424 Esta Norma Regulamentadora – NR tem por finalidade estabelecer as diretrizes básicas para a implementação de medidas de proteção à segurança e à saúde dos trabalhadores dos serviços de saúde, bem como daqueles que exercem atividades de promoção e assistência à saúde em geral. NR-33 - SEGURANÇA E SAÚDE NO TRABALHO EM ESPAÇOS CONFINADOS Esta Norma tem como objetivo estabelecer os requisitos mínimos para identificação de espaços confinados e o reconhecimento, avaliação, monitoramento e controle dos riscos existentes, de forma a garantir permanentemente a segurança e saúde dos trabalhadores que interagem direta ou indiretamente nestes espaços Elaborado por: Analisado por: Professor : Marcelo Gandra Falcone Alessandra Aparecida Vieira Marcelo Gandra Falcone QUANDO IMPRESSO CONSIDERAR PIRATARIA - CÓPIA NÃO AUTORIZADA
  • 411.
    UNINOVE Rev. B Engenharia deAvaliações e Perícias Manutenção Predial e Avaliação de Máquinas e Equipamentos 16/07/2011 Folha 411/424 APENDICE 5 – Normas Eng Civil Relação das Normas Técnicas da Biblioteca de Normas Técnicas – Sinduscon – Sebrae ACESSIBILIDADE NBR 9050 Acessibilidade de pessoas portadoras de deficiências a edificações, mobiliário e equipamentos urbanos ACÚSTICA NBR 8572 Fixação de valores de redução de nível de ruído para tratamento acústico de edificações expostas ao ruído aeronáutico – procedimento NBR 10151 Acústica – Avaliação do ruído em áreas habitadas, visando o conforto da comunidade – procedimento NBR 10152 Níveis de ruído para conforto acústico NBR 10830 (TB 355) Acústica dos edifícios NBR 12179 Tratamento acústico em recintos fechados - procedimento ALVENARIA - BLOCOS NBR 5712 Blocos vazados modular de concreto NBR 6460 –jun-83 Tijolo maciço cerâmico para alvenaria - Verificação da resistência à compressão NBR 7170 –jun-83 Tijolo maciço cerâmico para alvenaria NBR 7173 Blocos vazados de concreto simples para alvenaria sem função estrutural NBR 8041 - -jun-83 Tijolo maciço cerâmico para alvenaria - Forma e dimensões NBR 8545 01-jul-84 Execução de alvenaria sem função estrutural de tijolos e blocos cerâmicos NBR 12117 01-out-91 Blocos vazados de concreto para alvenaria - Retração por secagem. NBR 12118 01-out-91 Blocos vazados de concreto simples para alvenaria - Determinação da absorção de água, do teor de umidade e da área líquida NBR 14956-1 01-mai-03 Blocos de concreto celular autoclavado - Execução de alvenaria sem função estrutural - Parte 1: Procedimento com argamassa colante industrializada NBR 14956-2 01-mai-03 Bloco de concreto celular autoclavado - Execução de alvenaria sem função estrutural - Parte 2 : Procedimento com argamassa convencional NBR 15270-1 31-ago-05 Componentes cerâmicos - Parte 1: Blocos cerâmicos para alvenaria de vedação - Terminologia e requisitos NBR 15270-2 31-ago-05 Componentes cerâmicos - Parte 2: Blocos cerâmicos para alvenaria estrutural - Terminologia e requisitos NBR 15270-3 31-ago-05 Componentes cerâmicos - Parte 3: Blocos cerâmicos para alvenaria estrutural e de vedação - Método de ensaio Elaborado por: Analisado por: Professor : Marcelo Gandra Falcone Alessandra Aparecida Vieira Marcelo Gandra Falcone QUANDO IMPRESSO CONSIDERAR PIRATARIA - CÓPIA NÃO AUTORIZADA
  • 412.
    UNINOVE Rev. B Engenharia deAvaliações e Perícias Manutenção Predial e Avaliação de Máquinas e Equipamentos 16/07/2011 Folha 412/424 ALVENARIA - ESTRUTURAL NBR 6136 Bloco vazado de concreto simples para alvenaria estrutural NBR 8215 01-out-83 Prismas de blocos vazados de concreto simples para alvenaria estrutural - Preparo e ensaio à compressão NBR 8798 01-fev-85 Execução e controle de obras em alvenaria estrutural de blocos vazados de concreto NBR 8949 01-jul-85 Paredes de alvenaria estrutural - Ensaio à compressão simples NBR 10837 Cálculo de alvenaria estrutural de blocos vazados de concreto procedimento NBR 14321 01-mai-99 Paredes de alvenaria estrutural - Determinação da resistência ao cisalhamento NBR 14322 01-mai-99 Paredes de alvenaria estrutural - Verificação da resistência à flexão simples ou à flexo-compressão AMOSTRAGEM NBR 5425 Guia para inspeção por amostragem no controle e certificação de qualidade NBR 5426 Planos de amostragem e procedimentos na inspeção por atributos NBR 5427 Guia para utilização da norma NBR 5426 – Planos de amostragem e procedimentos na inspeção por atributos NBR 5428 Procedimentos estatísticos para determinação da validade de inspeção por atributos feitos pelos fornecedores NBR 5429 Planos de amostragem e procedimentos na inspeção por variáveis NBR 5430 Guia de utilização da norma NBR 5429 - Planos de amostragem e procedimentos na inspeção por variáveis AR CONDICIONADO NBR 6401 Instalações de centrais de ar condicionado para conforto – Parâmetros básicos de projeto NBR 10080 01-nov-87 Instalações de ar condicionado para salas de computadores AR CONDICIONADO - CONDICIONADORES NBR 6675 02-jul-93 Instalação de condicionadores de ar de uso doméstico (tipo monobloco ou modular) NBR 14679 01-abr-01 Sistemas de condicionamento de ar e ventilação - Execução de serviços de higienização ARGAMASSA NBR 8490 01-abr-84 Argamassas endurecidas para alvenaria estrutural - Retração por secagem NBR 9778 29-jul-05 Argamassa e concreto endurecidos - Determinação da absorção de água, índice de vazios e massa específica - (Errata 31/05/2006) Elaborado por: Analisado por: Professor : Marcelo Gandra Falcone Alessandra Aparecida Vieira Marcelo Gandra Falcone QUANDO IMPRESSO CONSIDERAR PIRATARIA - CÓPIA NÃO AUTORIZADA
  • 413.
    UNINOVE Rev. B Engenharia deAvaliações e Perícias Manutenção Predial e Avaliação de Máquinas e Equipamentos 16/07/2011 Folha 413/424 NBR 9779 02-abr-95 Argamassa e concreto endurecidos - Determinação da absorção de água por capilaridade NBR 10908 01-jan-90 Aditivos para argamassa e concretos - Ensaios de uniformidade NBR 11173 – Projeto e Execução de Argamassa Armada NBR 11801 01-abr-92 Argamassa de alta resistência meânica para pisos NBR 12041 01-abr-92 Argamassa de alta resistência mecânica para pisos - Determinação da resistência à compressão simples e tração por compressão diametral NBR 13276 30-set-05 Argamassa para assentamento e revestimento de paredes e tetos Preparo da mistura e determinação do índice de consistência NBR 13277 30-set-05 Argamassa para assentamento e revestimento de paredes e tetos – Determinação da retenção de água NBR 13278 30-set-05 Argamassa para assentamento e revestimento de paredes e tetos – Determinação da densidade de massa e do teor de ar incorporado NBR 13279 30-set-05 Argamassa para assentamento e revestimento de paredes e tetos – Determinação da resistência à tração na flexão e à compressão NBR 13280 30-set-05 Argamassa para assentamento e revestimento de paredes e tetos – Determinação da densidade de massa aparente no estado endurecido NBR 13281 30-set-05 Argamassa para assentamento e revestimento de paredes e tetos – Requisitos NBR 15259 30-set-05 Argamassa para assentamento e revestimento de paredes e tetos – Determinação da absorção de água por capilaridade e do coeficiente de capilaridade NBR 15261 30-set-05 Argamassa para assentamento e revestimento de paredes e tetos – Determinação da variação dimensional (retração ou expansão linear) ARGAMASSA - ASSENTAMENTO NBR 9287 01-mar-86 Argamassa de assentamento para alvenaria de bloco de concreto Determinação da retenção de água NBR 14081 01-dez-04 Argamassa colante industrializada para assentamento de placas cerâmicas – Requisitos NBR 14083 Argamassa colante industrializada para assentamento de placas cerâmicas – determinação do tempo em aberto NBR 14084 Argamassa colante industrializada para assentamento de placas cerâmicas – determinação da resistência de aderência NBR 14086 31-dez-04 Argamassa colante industrializada para assentamento de placas cerâmicas - Determinação da densidade de massa aparente ARGAMASSA - REVESTIMENTO NBR 7200 01-ago-98 Execução de revestimento de paredes e tetos de argamassas inorgânicas - Procedimento NBR 13528 01-nov-95 Revestimento de paredes e tetos de argamassas inorgânicas Determinação da resistência de aderência à tração NBR 13529 01-nov-95 Revestimento de paredes e tetos de argamassas inorgânicas Terminologia Elaborado por: Analisado por: Professor : Marcelo Gandra Falcone Alessandra Aparecida Vieira Marcelo Gandra Falcone QUANDO IMPRESSO CONSIDERAR PIRATARIA - CÓPIA NÃO AUTORIZADA
  • 414.
    UNINOVE Rev. B Engenharia deAvaliações e Perícias Manutenção Predial e Avaliação de Máquinas e Equipamentos 16/07/2011 Folha 414/424 NBR 13530 01-nov-95 Revestimento de paredes e tetos de argamassas inorgânicas Classificação NBR 13749 01-dez-96 Revestimento de paredes e tetos de argamassas inorgânicas Especificação NBR 15258 30-set-05 Argamassa para revestimento de paredes e tetos – Determinação da resistência potencial de aderência à tração AZULEJO / CERÂMICA NBR 5716 –fev.82 Componentes de cerâmica, de concreto ou de outro material utilizado em lajes mistas na construção coordenada modularmente. NBR 8214 01-out-83 Assentamento de azulejos NBR 13753 01-dez-96 Revestimento de piso interno ou externo com placas cerâmicas e com utilização de argamassa colante - Procedimento NBR 13754 01-dez-96 Revestimento de paredes internas com placas cerâmicas e com utilização de argamassa colante - Procedimento NBR 13755 01-dez-96 Revestimento de paredes externas e fachadas com placas cerâmicas e com utilização de argamassa colante - Procedimento NBR 13816 01-abr-97 Placas cerâmicas para revestimento - Terminologia NBR13817 –abr Placas cerâmicas para revestimento – Classificação NBR 13818 01-abr-97 Placas cerâmicas para revestimento - Especificação e métodos de ensaios CAIXILHOS NBR 6485 Caixilho para edificações – janela, fachada – cortina e porta externa – verificação de penetração de ar NBR 6486 Caixilho para edificações – janela, fachada – cortina e porta externa – verificação de estanqueidade à água NBR 6487 Caixilho para edificações – janela, fachada – cortina e porta externa – verificação de comportamento quando submetidos a cargas uniformemente distribuídas NBR 10820 (TB 354) Caixilho para edificação – janela – terminologia NBR 10821 Caixilho para edificação – janelas NBR 10829 (NB 1220) Caixilho para edificação – janela – medição de atenuação acústica – método de ensaio NBR 10831 (NB 1220) Projeto e utilização de caixilhos para edificações de uso residencial e comercial – janelas COBERTURA NBR 8039 Projeto e execução de telhados com telhas cerâmicas tipo francesa NBR 8055 01-set-85 Parafusos, ganchos e pinos usados para a fixação de telhas de fibrocimento - Dimensões e tipos NBR 13858-1 01-abr-97 Telhas de concreto - Parte 1: Projeto e execução de telhados NBR 13858-2 01-abr-97 Telhas de concreto - Parte 2: Requisitos e métodos de ensaio Elaborado por: Analisado por: Professor : Marcelo Gandra Falcone Alessandra Aparecida Vieira Marcelo Gandra Falcone QUANDO IMPRESSO CONSIDERAR PIRATARIA - CÓPIA NÃO AUTORIZADA
  • 415.
    UNINOVE Rev. B Engenharia deAvaliações e Perícias Manutenção Predial e Avaliação de Máquinas e Equipamentos 16/07/2011 Folha 415/424 NBR 14513 01-nov-02 Telhas de aço revestido de seção ondulada - Requisitos NBR 14514 01-jun-02 Telhas de aço revestido de seção trapezoidal - Requisitos NBR 15310 30-nov-05 Componentes cerâmicos - Telhas - Terminologia, requisitos e métodos de ensaio ELÉTRICA NBR 5111 01-mai-97 Fios de cobre nus, de seção circular, para fins elétricos Especificação NBR 5118 01-nov-85 Fios de alumínio nus de seção circular para fins elétricos NBR 5349 01-fev-97 Cabos nus de cobre mole para fins elétricos - Especificação NBR 5354 Requisitos gerais para material de instalações elétricas NBR 5382 Verificação de iluminância de interiores NBR 5410 Instalações elétricas de baixa tensão NBR 5413 Iluminância de Interiores NBR 5444 Símbolos gráficos para instalações elétricas prediais NBR 5456 Eletricidade geral – Terminologia NBR 5461 Iluminação NBR 6150 01-dez-80 Eletroduto de PVC rígido NBR 6349 01-abr-91 Fios, barras e cordoalhas de aço para armaduras de protensão Ensaio de tração NBR 6689 30-jul-81 Requisitos gerais para condutos de instalações elétricas prediais NBR 8451 01-fev-98 Postes de concreto armado para redes de distribuição de energia elétrica - Especificação NBR 8452 01-fev-98 Postes de concreto armado para redes de distribuição de energia elétrica – Padronização NBR 8837 Iluminação esportiva NBR 12523 Símbolos gráficos de equipamentos de manobra e controle e de dispositivos de proteção NBR 13418 01-jul-95 Cabos resistentes ao fogo para instalações de segurança NBR 13534 01-nov-95 Instalações elétricas em estabelecimentos assistenciais de saúde – Requisitos para segurança NBR 13570 Instalações elétricas em locais de afluência de público – requisitos específicos NBR 13571 01-fev-96 Haste de aterramento aço-cobreada e acessórios NBR 14039 31-mai-05 Instalações elétricas de média tensão de 1,0 kV a 36,2 kV ELEVADORES NBR 5665 Cálculo de tráfego nos elevadores – procedimento EQUIPAMENTO URBANO Elaborado por: Analisado por: Professor : Marcelo Gandra Falcone Alessandra Aparecida Vieira Marcelo Gandra Falcone QUANDO IMPRESSO CONSIDERAR PIRATARIA - CÓPIA NÃO AUTORIZADA
  • 416.
    UNINOVE Rev. B Engenharia deAvaliações e Perícias Manutenção Predial e Avaliação de Máquinas e Equipamentos 16/07/2011 Folha 416/424 NBR 9283 Mobiliário urbano – classificação NBR 9284 Equipamento urbano – classificação ESQUADRIAS (ver caixilho) ESTRUTURA NBR 6118 Projeto de estruturas de concreto - procedimento NBR 6120 01-nov-80 Cargas para o cálculo de estruturas de edificações - (Errata 01/04/2000) NBR 6123 01-jun-88 Forças devidas ao vento em edificações - (Errata 01/12/1990) NBR 8953 Concreto para fins estruturais – classificação por grupos de resistência ESTRUTURA - AÇO NBR 8800 01-abr-86 Projeto e execução de estruturas de aço de edifícios (método dos estados limites) - Erratas (30/07/1988 e 30/04/1997) NBR 9971 01-ago-87 Elementos de fixação dos componentes das estruturas metálicas NBR 14323 01-jun-99 Dimensionamento de estruturas de aço de edifícios em situação de incêndio Procedimento ESTRUTURA – CONCRETO NBR 5738 30-dez-03 Concreto - Procedimento para moldagem e cura de corpos-de-prova NBR 5739 01-jul-94 Concreto - Ensaio de compressão de corpos-de-prova cilíndricos NBR 7176 - Mourões de concreto armado para cercas de arame farpado NBR 7211 30-mar-05 Agregados para concreto - Especificação - (Errata 29/07/2005) NBR 7212 01-dez-84 Execução de concreto dosado em central NBR 7584 01-mar-95 Concreto endurecido - Avaliação da dureza superficial pelo esclerômetro de reflexão NBR 7680 01-jan-83 Extração, preparo, ensaio e análise de testemunhos de estruturas de concreto NBR 8224 01-nov-83 Concreto endurecido - Determinação da fluência NBR 8453 - Cruzeta de concreto armado para redes de distribuição de energia elétrica NBR 8454 - Cruzeta de concreto armado para redes de distribuição de energia elétrica – Dimensões NBR 9062 Projeto e execução de Estruturas de concreto Pré-moldado NBR 9607 01-set-86 Prova de carga em estruturas de concreto armado e protendido. NBR 9935 29-jul-05 Agregados - Terminologia NBR 10342 02-set-92 Concreto - Perda de abatimento NBR 10786 01-nov-89 Concreto endurecido - Determinação do coeficiente de permeabilidade à água NBR 11768 01-jan-92 Aditivos para concreto de cimento Portland Elaborado por: Analisado por: Professor : Marcelo Gandra Falcone Alessandra Aparecida Vieira Marcelo Gandra Falcone QUANDO IMPRESSO CONSIDERAR PIRATARIA - CÓPIA NÃO AUTORIZADA
  • 417.
    UNINOVE Rev. B Engenharia deAvaliações e Perícias Manutenção Predial e Avaliação de Máquinas e Equipamentos 16/07/2011 Folha 417/424 NBR 12317 01-jan-92 Verificação de desempenho de aditivos para concreto NBR 12654 01-jun-92 Controle tecnológico de materiais componentes do concreto – (Errata 01/03/2000) NBR 12655 14-ago-06 Concreto de cimento Portland – Preparo, controle e recebimento – Procedimento. ( NORMA ATUALIZADA ) NBR 12815 01-fev-93 Concreto endurecido - Determinação do coeficiente de dilatação térmica linear NBR 12816 01-fev-93 Concreto endurecido - Determinação da capacidade de deformação de concreto submetido à tração na flexão NBR 12817 01-mar-93 Concreto endurecido - Determinação do calor específico NBR 14931 Execução de estruturas de concreto - procedimento NBR 15146 01-out-04 Controle tecnológico de concreto - Qualificação de pessoal – Requisitos NBR 15305 - Produtos pré-fabricados de materiais cimentícios reforçados com fibra de vidro - Procedimentos para o controle da fabricação NBR NM 33 01-fev-98 Concreto - Amostragem de concreto fresco NBR NM 67 01-fev-98 Concreto - Determinação da consistência pelo abatimento do tronco de cone NBR NM 9 17-jul-03 Concreto e argamassa - Determinação dos tempos de pega por meio de resistência à penetração NM 55 01-jan-96 Concreto - Determinação da resistência à tração na flexão de corpos-deprova prismáticos NM 8 01-jan-94 Concreto - Determinação da resistência à tração por compressão diametral FUNDAÇÃO NBR 6122 Projeto e execução de fundações NBR 9061 01-set-85 Segurança de escavação a céu aberto NBR 11682 01-set-91 Estabilidade de taludes FUNDAÇÃO - ESTACA NBR 12131 01-abr-92 Estacas - Prova de carga estática FUNDAÇÃO – SOLO NBR 5681 01-nov-80 Controle tecnológico da execução de aterros em obras de edificações NBR 6484 Solo – sondagens de simples reconhecimento com SPT – método de ensaio NBR 6497 Levantamento geotécnico NBR 7182 01-ago-86 Solo - Ensaio de compactação NBR 8036 Programação de sondagens de simples reconhecimento dos solos para fundações de edifícios NBR 8044 Projeto geotécnico - procedimento Elaborado por: Analisado por: Professor : Marcelo Gandra Falcone Alessandra Aparecida Vieira Marcelo Gandra Falcone QUANDO IMPRESSO CONSIDERAR PIRATARIA - CÓPIA NÃO AUTORIZADA
  • 418.
    UNINOVE Rev. B Engenharia deAvaliações e Perícias Manutenção Predial e Avaliação de Máquinas e Equipamentos 16/07/2011 Folha 418/424 NBR 9603 Sondagem a trado NBR 12069 01-jun-91 Solo - Ensaio de penetração de cone in situ (CPT) NBR 12102 01-nov-91 Solo - Controle de compactação pelo método de Hilf NBR 14545 01-jul-00 Solo - Determinação do coeficiente de permeabilidade de solos argilosos a carga variável GÁS NBR 13103 31-mar-06 Instalação de aparelhos a gás para uso residencial — Requisitos dos ambientes NBR 13523 28-fev-06 Central de gás liquefeito de petróleo (GLP) NBR 13932 Instalações internas de gás liquefeito de petróleo (GLP) – projeto e execução NBR 13933 01-ago-97 Instalações internas de gás natural (GN) - Projeto e execução NBR 14024 Centrais prediais e industriais de gás liquefeito de petróleo (GLP) - sistema de abastecimento a granel NBR 14177 01-ago-98 Tubo flexível metálico para instalações domésticas de gás combustível NBR 14570 01-ago-00 Instalações internas para uso alternativo dos gases GN e GLP Projeto e execução GESSO NBR 12127 Gesso para construção- determinação das propriedades físicas do pó – métodos de ensaio NBR 12128 (MB 3469) Gesso para construção- determinação das propriedades físicas da pasta NBR 12129 (MB 3470) Gesso para construção- determinação das propriedades mecânicas NBR 12130 (MB 3471) Gesso para construção- determinação da água livre e de cristalização e teores de óxido de cálcio e anidrido sulfúrico – métodos de ensaios NBR 12775 Placas lisas de gesso para forro – determinação das dimensões e propriedades físicas NBR 13207 Gesso para construção civil NBR 13867 Revestimento interno de paredes e tetos com pastas de gesso – materiais, preparo, aplicação e acabamento GESSO ACARTONADO NBR 14715 01-jul-01 Chapas de gesso acartonado – Requisitos NBR 14716 01-jul-01 Chapas de gesso acartonado - Verificação das características geométricas NBR 14717 01-jul-01 Chapas de gesso acartonado - Determinação das características físicas NBR 15217 29-abr-05 Perfis de aço para sistemas de gesso acartonado - Requisitos Elaborado por: Analisado por: Professor : Marcelo Gandra Falcone Alessandra Aparecida Vieira Marcelo Gandra Falcone QUANDO IMPRESSO CONSIDERAR PIRATARIA - CÓPIA NÃO AUTORIZADA
  • 419.
    UNINOVE Rev. B Engenharia deAvaliações e Perícias Manutenção Predial e Avaliação de Máquinas e Equipamentos 16/07/2011 Folha 419/424 HIDRÁULICA NBR 6493 Emprego de cores para identificação de tubulações NBR 12266 01-abr-92 Projeto e execução de valas para assentamento de tubulação de água, esgoto ou drenagem urbana HIDRÁULICA - AF NBR 5626 Instalação predial de água fria NBR 5648 01-jan-99 Sistemas prediais de água fria - Tubos e conexões de PVC 6,3, PN 750 kPa, com junta soldável – Requisitos NBR 5680 Dimensões de tubos de PVC rígido NBR 9256 01-fev-86 Montagem de tubos e conexões galvanizados para instalações prediais de água fria NBR 10570 01-dez-88 Tubos e conexões de PVC rígido com junta elástica para coletor predial e sistema condominial de esgoto sanitário - Tipos e dimensões NBR 14301 01-mai-99 Sistemas de ramais prediais de água - Tubos de polietileno PE – Determinação das dimensões HIDRÁULICA - AP NBR 5688 01-jan-99 Sistemas prediais de água pluvial, esgoto sanitário e ventilação Tubos e conexões de PVC, tipo DN – Requisitos NBR 10844 Instalações prediais de águas pluviais - procedimento HIDRÁULICA - AQ NBR 7198 02-set-93 Projeto e execução de instalações prediais de água quente NBR 15345 31-mar-06 Instalação predial de tubos e conexões de cobre e ligas de cobre Procedimento HIDRÁULICA - CERÂMICO NBR 15098 30-jun-04 Aparelhos sanitários de material cerâmico - Procedimento para instalação HIDRÁULICA - ESGOTO NBR 7229 01-set-93 Projeto, construção e operação de sistemas de tanques sépticos NBR 7367 Projeto e assentamento de tubulações de PVC rígido para sistemas de esgoto sanitário – procedimento NBR 8160 Sistemas prediais de esgoto sanitário – Projeto e execução NBR 9814 Execução de rede coletora de esgoto sanitário – procedimento NBR 13969 01-set-97 Tanques sépticos - Unidades de tratamento complementar e disposição final dos efluentes líquidos - Projeto, construção e operação NBR 14486 Sistemas enterrados para condução de esgoto sanitário – projeto de redes coletoras com tubos de PVC Elaborado por: Analisado por: Professor : Marcelo Gandra Falcone Alessandra Aparecida Vieira Marcelo Gandra Falcone QUANDO IMPRESSO CONSIDERAR PIRATARIA - CÓPIA NÃO AUTORIZADA
  • 420.
    UNINOVE Rev. B Engenharia deAvaliações e Perícias Manutenção Predial e Avaliação de Máquinas e Equipamentos 16/07/2011 Folha 420/424 IMPERMEABILIZAÇÃO NBR 9574 Execução de impermeabilização NBR 9575 Projeto de impermeabilização NBR 9690 Mantas e polímeros para impermeabilização INCORPORAÇÃO NBR 5670 30-dez-77 Seleção e contratação de serviços e obras de engenharia e arquitetura de natureza privada NBR 5671 01-jun-90 Participação dos intervenientes em serviços e obras de engenharia e arquitetura NBR 5675 01-nov-80 Recebimento de serviços e obras de engenharia e arquitetura NBR 12721 28-ago-06 Avaliação de custos unitários de construção para incorpooração imobiliária e outras disposições para condomínios edifícios edilícios - Procedimento NBR 12722 01-ago-92 Discriminação de serviços para construção de edifícios NBR 13752 01-dez-96 Perícias de engenharia na construção civil NBR 14645-1 Elaboração do "como construído" (as built) para edificações - Parte 1: Levantamento planimétrico e cadastral de imóvel urbanizado com área até 25.000 m2, para fins de estudos, projetos e edificação - Procedimento NBR 14645-2 30-dez-05 Elaboração do "como construído" (as built) para edificações Parte 2: Levantamento planimétrico para registro público, para retificação de imóvel urbano - Procedimento NBR 14645-3 30-dez-05 Elaboração do "como construído" (as built) para edificações Parte 3: Locação topográfica e controle dimensional da obra - Procedimento LAJES PRÉ-FABRICADAS NBR 14859-1 Laje pré-fabricada – requisitos – parte 1: lajes unidirecionais NBR 14859-2 Laje pré-fabricada – requisitos – parte 1: lajes bidirecionais NBR 14860-1 Laje pré-fabricada – pré-laje - requisitos – parte 1: lajes unidirecionais NBR 14860-2 Laje pré-fabricada – pré-laje - requisitos – parte 1: lajes bidirecionais NBR 14861 Laje pré-fabricada – painel alveolar de concreto protendido - requisitos MANUTENÇÃO NBR 5674 01-set-99 Manutenção de edificações Procedimento NBR 14037 01-mar-98 Manual de operação, uso e manutenção das edificações Conteúdo e recomendações para elaboração e apresentação PAVIMENTAÇÃO NBR 11171 01-jan-90 Serviços de pavimentação PINTURA Elaborado por: Analisado por: Professor : Marcelo Gandra Falcone Alessandra Aparecida Vieira Marcelo Gandra Falcone QUANDO IMPRESSO CONSIDERAR PIRATARIA - CÓPIA NÃO AUTORIZADA
  • 421.
    UNINOVE Rev. B Engenharia deAvaliações e Perícias Manutenção Predial e Avaliação de Máquinas e Equipamentos 16/07/2011 Folha 421/424 NBR 5829 Determinação de Massa específica NBR 5839 Coleta de amostras de tintas e vernizes NBR 6312 (NB 2014) Inspeção visual de embalagens contendo tintas, vernizes e produtos afins NBR 9675 Segurança na fabricação de tintas NBR 9676 Tintas determinação do poder de cobertura (opacidade) – métodos de ensaio NBR 9675 Segurança na fabricação de tintas – procedimento NBR 11702 Tintas para edificações não residenciais NBR 12311 01-abr-92 Segurança no trabalho de pintura NBR 12554 Tintas para edificações não industriais - terminologia NBR 13245 01-fev-95 Execução de pinturas em edificações não industriais NBR 14847 01-abr-02 Inspeção de serviços de pintura em superfícies metálicas Procedimento NBR 14942 Determinação do Poder de cobertura de tinta seca NBR 14943 Determinação do Poder de cobertura de tinta úmida NBR 14951 01-abr-03 Sistemas de pintura em superfícies metálicas - Defeitos e correções NBR 15078 Determinação de Resistência a abrasão úmida sem pasta abrasiva NBR 15079 Tintas para a construção civil - especificação dos requisitos mínimos de desempenho de tintas para edificações não industriais – tinta látex econômica nas cores claras NBR 15299 30-dez-05 Tintas para construção civil — Método para avaliação de desempenho de tintas para edificações não industriais — Determinação de brilho NBR 15301 30-dez-05 Tintas para construção civil — Método para avaliação de desempenho de tintas para edificações não industriais — Determinação da resistência de tintas e complementos ao crescimento de fungos em câmara tropical NBR 15303 30-dez-05 Tintas para construção civil — Método para avaliação de desempenho de tintas para edificações não industriais — Determinação da absorção de água de massa niveladora NBR 15304 30-dez-05 Tintas para construção civil — Método para avaliação de desempenho de tintas para edificações não industriais — Avaliação de manchamento por água NBR 15311 30-dez-05 Tintas para construção civil — Método para avaliação de desempenho de tintas para edificações não industriais — Determinação do tempo de secagem de tintas e vernizes por medida instrumental NBR 15312 30-dez-05 Tintas para construção civil — Método para avaliação de desempenho de tintas para edificações não industriais — Determinação da resistência à abrasão de massa niveladora NBR 15313 30-dez-05 Tintas para construção civil — Procedimento básico para lavagem, preparo e esterilização de materiais utilizados em análises microbiológicas NBR 15314 30-dez-05 Tintas para construção civil — Método para avaliação de desempenho de tintas para edificações não industriais — Determinação do poder de cobertura em película de tinta seca obtida por extensão Elaborado por: Analisado por: Professor : Marcelo Gandra Falcone Alessandra Aparecida Vieira Marcelo Gandra Falcone QUANDO IMPRESSO CONSIDERAR PIRATARIA - CÓPIA NÃO AUTORIZADA
  • 422.
    UNINOVE Rev. B Engenharia deAvaliações e Perícias Manutenção Predial e Avaliação de Máquinas e Equipamentos 16/07/2011 Folha 422/424 NBR 15315 30-dez-05 Tintas para construção civil — Método de ensaio de tintas para edificações não industriais — Determinação do teor de sólidos PISCINA NBR 9816 Piscina – Terminologia NBR 9818 Projeto e execução de piscina (tanque e área circundante) NBR 9819 Piscina – Classificação NBR 10339 Projeto e execução de piscina – sistema de recirculação e tratamento NBR 10819 Projeto e execução de piscina (casa de máquinas, vestiários e banheiros) NBR 11238 Segurança e higiene de piscinas NBR 11239 (NB 1300) Projeto e execução de piscina (equipamentos para a borda do tanque) PISO NBR 6451 Taco de madeira para soalho - especificação NBR 7686 01-jan-83 Revestimentos têxteis de piso NBR 7206 Placas de mármore natural para revestimento de pisos - Padronização NBR 12260 01-dez-90 Execução de piso com argamassa de alta resistência mecânica NBR 14833-2 21-jul-03 Revestimento de pisos laminados melamínicos de alta resistência - Parte 2: Procedimentos para aplicação e manutenção PISOS ELEVADOS NBR 11802 01-fev-91 Pisos elevados - Adequação ao uso NBR 12516 01-fev-91 Pisos elevados - Simbologia PLAYGROUND NBR 14350-1 01-jul-99 Segurança de brinquedos de playground - Parte 1: Requisitos e métodos de ensaio - ( Errata (02/10/1999) PORTA NBR 8037 01-jun-83 Porta de madeira de edificação NBR 8052 Porta de madeira de edificações – Dimensões - Padronização NBR 8542 01-set-86 Desempenho de porta de madeira de edificação PROJETOS NBR 6492 Representação de projetos de arquitetura NBR 7190 Projeto de estrutura de madeira NBR 7808 Símbolos gráficos para projetos estruturais NBR 10067 Princípios gerais de representação em desenho técnico – procedimento Elaborado por: Analisado por: Professor : Marcelo Gandra Falcone Alessandra Aparecida Vieira Marcelo Gandra Falcone QUANDO IMPRESSO CONSIDERAR PIRATARIA - CÓPIA NÃO AUTORIZADA
  • 423.
    UNINOVE Rev. B Engenharia deAvaliações e Perícias Manutenção Predial e Avaliação de Máquinas e Equipamentos 16/07/2011 Folha 423/424 NBR 10068 Folha de desenho - leiaute e dimensões NBR 13531 Elaboração de projetos de edificações – atividades técnicas NBR 13532 Elaboração de projetos de edificações – arquitetura NBR 13707 Projeto de revestimento de paredes e estruturas com placa de rocha SEGURANÇA NBR 5419 Proteção de estruturas contra descargas atmosféricas NBR 6135 30-abr-92 Chuveiros automáticos para extinção de incêndio Especificação NBR 6479 02-abr-92 Portas e vedadores Determinação da resistência ao fogo NBR 7195 Cores para segurança NBR 7679 Termos básicos relativos à cor – terminologia NBR 8681 Ações e segurança nas estruturas – procedimento NBR 9077 Saídas de emergência em edifícios NBR 17240 - 2010 Execução de sistemas de detecção e alarme de incêndio Procedimento NBR 10898 Sistema de Iluminação de emergência NBR 11742 Porta corta-fogo para saída de emergência – especificação NBR 11785 Barra Antipânico – Requisitos NBR 11836 Detectores de automáticos de fumaça para proteção contra incêndio NBR 12615 Sistema de combate a incêndio por espuma - procedimento NBR 12693 Sistemas de proteção por extintores de incêndio – procedimento NBR 13434-1 31-mar-04 Sinalização de segurança contra incêndio e pânico - Parte 1: Princípios de projeto NBR 13434-2 31-mar-04 Sinalização de segurança contra incêndio e pânico - Parte 2: Símbolos e suas formas, dimensões e cores NBR 13434-3 29-jul-05 Sinalização de segurança contra incêndio e pânico - Parte 3: Requisitos e métodos de ensaio NBR 13714 Sistemas de hidrantes e de mangotinhos para combate a incêndio NBR 13768 01-jan-97 Acessórios destinados à porta corta-fogo para saída de emergência – Requisitos NBR 13792 Proteção contra incêndio por sistema de chuveiros automáticos para áreas de armazenamento em geral – procedimento NBR 13848 Acionador manual para utilização em sistemas de detecção e alarme de incêndio NBR 14100 Proteção contra incêndio – símbolos gráficos para projetos NBR 14432 Exigências de resistência ao fogo de elementos construtivos de edificações procedimento NBR 14718 01-jul-01 Guarda-corpos para edificação NBR 14880 Saídas de emergência em edifícios- escadas de segurança – controle de fumaça por pressurização Elaborado por: Analisado por: Professor : Marcelo Gandra Falcone Alessandra Aparecida Vieira Marcelo Gandra Falcone QUANDO IMPRESSO CONSIDERAR PIRATARIA - CÓPIA NÃO AUTORIZADA
  • 424.
    UNINOVE Rev. B Engenharia deAvaliações e Perícias Manutenção Predial e Avaliação de Máquinas e Equipamentos 16/07/2011 Folha 424/424 TELEFONIA NBR 13300 Redes telefônicas internas em prédios NBR 13301 Redes telefônicas internas em prédios NBR 13726 Redes telefônicas internas em prédios – Tubulação de entrada telefônica – projeto NBR 13727 Redes telefônicas internas em prédios – Plantas / partes componentes de projeto de tubulação telefônica NBR 13822 01-mai-97 Redes telefônicas em edificações com até cinco pontos telefônicos – Projeto NBR 14306 Proteção elétrica e compatibilidade eletromagnética em redes internas de telecomunicações em edificações – Projeto NBR 14565 Procedimento básico para elaboração de projetos de cabeamento de telecomunicações para rede interna estruturada TOPOGRAFIA NBR 13133 30-mai-94 Execução de levantamento topográfico VIDRO NBR 7199 Projeto, execução e aplicação de vidros na construção civil NBR 11706 Vidros para construção civil - especificação NBR 14207 Boxes de banheiro, fabricados com vidro de segurança temperado – projeto, instalação e materiais utilizados Elaborado por: Analisado por: Professor : Marcelo Gandra Falcone Alessandra Aparecida Vieira Marcelo Gandra Falcone QUANDO IMPRESSO CONSIDERAR PIRATARIA - CÓPIA NÃO AUTORIZADA