Tipos de Contatos NF e NA (NC e NO)
Relé NF-NA
Representação Relé no Ladder
Estrutura da Programação Ladder
Possibilidades de acionamentos dos contatos no Ladder
Ao ser fechado o contato de entrada (I0.0), a bobina do relé interno (M0.0) é
energizada. No entanto, um relé interno não está associado a nenhuma saída
física, é somente uma posição de memória.
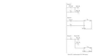
Conversão de diagramas elétricos em
diagrama Ladder
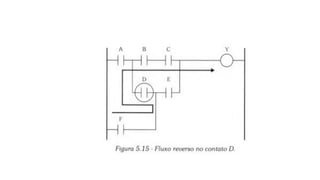
Circuitos de auto-retenção - Contatos "selo"
Seja o seguinte problema: Pretende-se controlar o funcionamento de um motor
por meio de dois botões de pressão A e B. Quando A for pressionado, o motor
deve ser ligado e assim permanecer até que B seja pressionado, quando então
deve desligar.
Instruções set e reset
A instrução set liga uma saída e a mantém ligada
mesmo que o contato da entrada deixe de
conduzir. Para desligar a saída é utilizada a
instrução reset
Realiza a contagem em ordem
crescente, de 0 até o valor setado
em PV.
Realiza a contagem em
ordem decrescente, do valor
setado PV até 0.
Exemplo 1: Em uma loja deseja-se montar um contador automático de parafusos, separando-os
em centenas. O sistema é composto de um reservatório do tipo funil que contém os parafusos. Em
sua extremidade mais fina há uma válvula borboleta que, quando energizada, abre-se e permite a
queda de parafusos um a um, e também um sensor fotoelétrico que gera um pulso todas as vezes
que um parafuso passa à sua frente. Após atingida a contagem de 100 parafusos a válvula
borboleta deve ser fechada. Elabore um programa em linguagem Ladder para atender a essa
necessidade.
Temporizadores
TP - Temporizador de Pulso (Pulse Timer)
Temporizador com retardo para ligar (TON - Timer On Delay)
Exemplo 3: Desenvolva um programa de forma que o motor seja acionado dez
segundos após ter sido pressionado um botão liga. É preciso prever o
desligamento através de um botão desliga.
Temporizador de atraso para desligar (TOF - Timer Off Delay)
Exemplo 4: Faça uma partida direta de motor e coloque uma lógica de
programação que impeça o motor de partir duas vezes seguidas no período de
dez segundos, utilizando um temporizador do tipo TOF.
Temporizador retentivo - RTO
A instrução de temporizador retentivo. de maneira semelhante à instrução TON, é
utilizada para energizar ou desativar um dispositivo, assim que for alcançado o
Preset
Exemplo 6: Ao pressionar um botão de partida BTN_LIGA, é ligado um motor M1
que comanda uma esteira que vai transportar chapas metálicas. O sensor
SENSOR1 detecta as chapas que são depositadas na esteira M2 . A cada 20
peças a esteira M1 deve parar e acionar o motor M2 por cinco segundos. O motor
M2 comanda a esteira que transporta as pilhas completas. O contador é
reiniciado com o valor zero e o processo se repete até que um botão DESLIGA
seja pressionado.
Exercícios
1) Elabore em linguagem Ladder um programa para acionar dois motores
elétricos (Motor 1 e Motor 2) de modo que, após o Motor 1 ser ligado através
de uma botoeira de impulso (push-button) (Liga), aguardem-se dez segundos
e o Motor 2 seja ligado. Também deve ser prevista uma chave (Desliga) que
desliga simultaneamente os dois motores.
Exercícios
2) Elabore um programa para o acionamento de dois motores, Motor 1 e Motor 2.
Pressionando a botoeira de impulso (push-button) (Liga), o Motor 1 entra em
funcionamento. O Motor 2 entra em funcionamento 15 segundos após o motor 1.
O botão DESLIGA deve desligar os dois motores ao mesmo tempo. O relé de
sobrecarga do Motor 2 desliga somente o Motor 2, porém o relé de sobrecarga do
Motor 1 desliga os dois motores.
Exercícios
3) Elabore um programa em linguagem Ladder para que o CLP ligue uma
lâmpada (L1) quando o número de pulsos dados em uma botoeira de impulso
(push-button) (Liga) for igual a 3 em um tempo não superior a dez segundos. Se o
tempo for maior que dez segundos, deve-se zerar o contador automaticamente.
Deve ser prevista chave de pulso (Desliga) para desligar a lâmpada.
Exercícios
4) Um misturador de tintas utiliza dois motores (Motor 1 e Motor 2) para
homogeneizar a mistura das tintas, os quais devem ser ligados alternadamente
em um intervalo de tempo definido de 30 segundos. Deve ser prevista uma chave
Desliga para interromper o funcionamento. Implemente esse acionamento
utilizando a linguagem Ladder.
Exercícios
5) Para a segurança do operador, o acionamento de uma prensa hidráulica deve
ser feito quando forem pressionadas duas chaves simultaneamente. O
acionamento é feito de maneira que, quando for acionada a primeira chave, não
possa transcorrer mais do que um segundo até que a segunda chave seja
acionada. A prensa deve parar imediatamente se o operador retirar uma das
mãos das chaves. Para a resolução deste problema, elabore um programa em
linguagem Ladder.
Exercícios
6) Uma das chaves de partida mais utilizadas na indústria é a estrela-triângulo,
como ilustra a Figura 8.34. Ela tem por função reduzir a corrente de partida do
motor. Para essa chave de partida são utilizados três contatores, que devem ser
acionados na seqüência descrita em seguida:
Ligam-se os contatores K3 e K1 .
Após transcorridos dez segundos, desliga-se K3 e liga-se K2 .
Exercícios
7) Quando o botão Início é acionado, o motor (M) se move da esquerda para a
direita. Quando o sensor de posição SP2 detecta o motor, o motor aguarda cinco
segundos, então se move para a esquerda. Quando o sensor SP1 detecta o
carro, ele o pára, finalizando a seqüência. O processo pode ser interrompido a
qualquer instante se o botão de Parada for pressionado.
Exercícios
8) Um circuito de controle é utilizado para detectar e contar o número de produtos
transportados em uma linha de montagem. Para iniciar o processo, é pressionado
o botão liga para acionar uma esteira de transporte. Um sensor é utilizado para a
contagem dos produtos. Quando forem contados cinco produtos, deve ser
acionada uma prensa por um período de dois segundos, sendo o transporte dos
produtos reiniciado. Deve ser previsto um botão de parada para finalizar o
processo. Implemente o processo descrito utilizando a linguagem Ladder
Aula  Ladder CLP eletrotécnica aulas.pdf
Aula  Ladder CLP eletrotécnica aulas.pdf
Aula  Ladder CLP eletrotécnica aulas.pdf

Aula Ladder CLP eletrotécnica aulas.pdf

  • 1.
    Tipos de ContatosNF e NA (NC e NO)
  • 3.
  • 4.
  • 5.
  • 7.
    Possibilidades de acionamentosdos contatos no Ladder
  • 12.
    Ao ser fechadoo contato de entrada (I0.0), a bobina do relé interno (M0.0) é energizada. No entanto, um relé interno não está associado a nenhuma saída física, é somente uma posição de memória.
  • 13.
    Conversão de diagramaselétricos em diagrama Ladder
  • 19.
    Circuitos de auto-retenção- Contatos "selo" Seja o seguinte problema: Pretende-se controlar o funcionamento de um motor por meio de dois botões de pressão A e B. Quando A for pressionado, o motor deve ser ligado e assim permanecer até que B seja pressionado, quando então deve desligar.
  • 22.
    Instruções set ereset A instrução set liga uma saída e a mantém ligada mesmo que o contato da entrada deixe de conduzir. Para desligar a saída é utilizada a instrução reset
  • 32.
    Realiza a contagemem ordem crescente, de 0 até o valor setado em PV.
  • 37.
    Realiza a contagemem ordem decrescente, do valor setado PV até 0.
  • 44.
    Exemplo 1: Emuma loja deseja-se montar um contador automático de parafusos, separando-os em centenas. O sistema é composto de um reservatório do tipo funil que contém os parafusos. Em sua extremidade mais fina há uma válvula borboleta que, quando energizada, abre-se e permite a queda de parafusos um a um, e também um sensor fotoelétrico que gera um pulso todas as vezes que um parafuso passa à sua frente. Após atingida a contagem de 100 parafusos a válvula borboleta deve ser fechada. Elabore um programa em linguagem Ladder para atender a essa necessidade.
  • 46.
  • 49.
    TP - Temporizadorde Pulso (Pulse Timer)
  • 51.
    Temporizador com retardopara ligar (TON - Timer On Delay)
  • 52.
    Exemplo 3: Desenvolvaum programa de forma que o motor seja acionado dez segundos após ter sido pressionado um botão liga. É preciso prever o desligamento através de um botão desliga.
  • 54.
    Temporizador de atrasopara desligar (TOF - Timer Off Delay)
  • 55.
    Exemplo 4: Façauma partida direta de motor e coloque uma lógica de programação que impeça o motor de partir duas vezes seguidas no período de dez segundos, utilizando um temporizador do tipo TOF.
  • 57.
    Temporizador retentivo -RTO A instrução de temporizador retentivo. de maneira semelhante à instrução TON, é utilizada para energizar ou desativar um dispositivo, assim que for alcançado o Preset
  • 58.
    Exemplo 6: Aopressionar um botão de partida BTN_LIGA, é ligado um motor M1 que comanda uma esteira que vai transportar chapas metálicas. O sensor SENSOR1 detecta as chapas que são depositadas na esteira M2 . A cada 20 peças a esteira M1 deve parar e acionar o motor M2 por cinco segundos. O motor M2 comanda a esteira que transporta as pilhas completas. O contador é reiniciado com o valor zero e o processo se repete até que um botão DESLIGA seja pressionado.
  • 61.
    Exercícios 1) Elabore emlinguagem Ladder um programa para acionar dois motores elétricos (Motor 1 e Motor 2) de modo que, após o Motor 1 ser ligado através de uma botoeira de impulso (push-button) (Liga), aguardem-se dez segundos e o Motor 2 seja ligado. Também deve ser prevista uma chave (Desliga) que desliga simultaneamente os dois motores.
  • 62.
    Exercícios 2) Elabore umprograma para o acionamento de dois motores, Motor 1 e Motor 2. Pressionando a botoeira de impulso (push-button) (Liga), o Motor 1 entra em funcionamento. O Motor 2 entra em funcionamento 15 segundos após o motor 1. O botão DESLIGA deve desligar os dois motores ao mesmo tempo. O relé de sobrecarga do Motor 2 desliga somente o Motor 2, porém o relé de sobrecarga do Motor 1 desliga os dois motores.
  • 63.
    Exercícios 3) Elabore umprograma em linguagem Ladder para que o CLP ligue uma lâmpada (L1) quando o número de pulsos dados em uma botoeira de impulso (push-button) (Liga) for igual a 3 em um tempo não superior a dez segundos. Se o tempo for maior que dez segundos, deve-se zerar o contador automaticamente. Deve ser prevista chave de pulso (Desliga) para desligar a lâmpada.
  • 64.
    Exercícios 4) Um misturadorde tintas utiliza dois motores (Motor 1 e Motor 2) para homogeneizar a mistura das tintas, os quais devem ser ligados alternadamente em um intervalo de tempo definido de 30 segundos. Deve ser prevista uma chave Desliga para interromper o funcionamento. Implemente esse acionamento utilizando a linguagem Ladder.
  • 65.
    Exercícios 5) Para asegurança do operador, o acionamento de uma prensa hidráulica deve ser feito quando forem pressionadas duas chaves simultaneamente. O acionamento é feito de maneira que, quando for acionada a primeira chave, não possa transcorrer mais do que um segundo até que a segunda chave seja acionada. A prensa deve parar imediatamente se o operador retirar uma das mãos das chaves. Para a resolução deste problema, elabore um programa em linguagem Ladder.
  • 66.
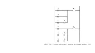
    Exercícios 6) Uma daschaves de partida mais utilizadas na indústria é a estrela-triângulo, como ilustra a Figura 8.34. Ela tem por função reduzir a corrente de partida do motor. Para essa chave de partida são utilizados três contatores, que devem ser acionados na seqüência descrita em seguida: Ligam-se os contatores K3 e K1 . Após transcorridos dez segundos, desliga-se K3 e liga-se K2 .
  • 68.
    Exercícios 7) Quando obotão Início é acionado, o motor (M) se move da esquerda para a direita. Quando o sensor de posição SP2 detecta o motor, o motor aguarda cinco segundos, então se move para a esquerda. Quando o sensor SP1 detecta o carro, ele o pára, finalizando a seqüência. O processo pode ser interrompido a qualquer instante se o botão de Parada for pressionado.
  • 70.
    Exercícios 8) Um circuitode controle é utilizado para detectar e contar o número de produtos transportados em uma linha de montagem. Para iniciar o processo, é pressionado o botão liga para acionar uma esteira de transporte. Um sensor é utilizado para a contagem dos produtos. Quando forem contados cinco produtos, deve ser acionada uma prensa por um período de dois segundos, sendo o transporte dos produtos reiniciado. Deve ser previsto um botão de parada para finalizar o processo. Implemente o processo descrito utilizando a linguagem Ladder