CURSO TÉCNICO EM TRANSAÇÕES IMOBILIÁRIAS
DESENHO E ARQUITETURA
Elisa Furian
elisafurian@outlook.com
COBERTURA E
NOÇÕES DE ESTRUTURA
COBERTURAS
Constituem estruturas de múltipla função que tem por objetivo:
Proteger a construção contra ação das intemperes
(agentes externos)
Definir o aspecto arquitetônico da estrutura do edifício
Garantir o escoamento das águas pluviais.
SUPERFÍCIES CURVAS - CASCAS
Caracterizadas por estruturas de lajes em arcos, em concreto armado,
tratadas com sistemas de impermeabilização.
SUPERFÍCIES CURVAS - ABÓBADAS
Cobertura composta por arcos sustentados em pilares ou
paredes auto portantes.
ABÓBADA DE BERÇO ABÓBADA DE ARESTA
SUPERFÍCIES CURVAS - ABÓBADAS
É uma abóbada que compreende 360 graus, um domo,
uma semi esfera.
SUPERFÍCIES CURVAS - CÚPULAS
SUPERFÍCIES CURVAS - CÚPULAS
Caracterizadas pelo uso de membranas plásticas (lonas), assentadas
sobre estruturas metálicas , de madeiras ou atirantadas com cabos de
aço - tensoestruturas, ou ainda, por sistemas infláveis com a utilização
de motores insufladores.
SUPERFÍCIES FLEXÍVEIS
SUPERFÍCIES FLEXÍVEIS
SUPERFÍCIES FLEXÍVEIS
SUPERFÍCIES PLANAS – LAJE PLANA
Possuem leve inclinação e são tratadas com sistemas de
impermeabilização.
SUPERFÍCIES PLANAS – LAJE PLANA
SUPERFÍCIES PLANAS – LAJE INCLINADA
São tratadas com sistemas de impermeabilização.
TELHADOS
São compostos por telhas e pelas estruturas de sustentação delas.
São constituídos pela composição de planos inclinados. A inclinação
das águas de um telhado corresponde às necessidades climáticas do
lugar onde esrá sendo costruido.
TELHADO
ESTRUTURA EM MADEIRA ESTRUTURA METÁLICA
COMPOSIÇÃO/ESTRUTURA TELHADO
TELHADO - TESOURA
Principal elemento de sustentação, transfere o peso do
telhado para a estrutura do edifício.
TELHADO - TRAMA
Conjunto de peças onde se assentam as telhas. A trama se
apoia nas tesouras.
ripas
caibros
terças
Terça da parte mais alta do telhado
TELHADO - CUMEEIRA
CUMEEIRA
CERÂMICA
As telhas cerâmicas
são as mais
tradicionais
CONCRETO
MADEIRA
FIBRO CIMENTO
FIBRA NATURAL
POLICARBONATO
VIDRO
TELHADO - TELHAS
O tipo e material da telha usada depende de
fatores como incidência de chuvas ou neve,
temperaturas médias da região, tipologia da
construção, vãos e disponibilidade de materiais
e mão-de-obra no local
CALHAS
Elementos que captam as águas pluviais (chuva) provenientes do
telhado e as conduzem através dos condutores verticais até o
sistema de drenagem do edifício
1 ÁGUA
ÁGUAS
Nome dado aos diversos planos que compõem o telhado.
2 ÁGUAS
4 ÁGUAS
ÁGUAS
6 ÁGUAS
BEIRAL
Parte da cobertura que avança além dos alinhamento das paredes
externas, protegendo-as contra a chuva. Geralmente avançam em
torno de 60cm à 1.00m.
São paredes com o objetivo de esconder o telhado.
PLATIBANDAS
INCLINAÇÃO
A inclinação é indicada pela porcentagem (%) = h/L
Chama-se inclinação da cobertura o ângulo (α) formado pelos
planos das coberturas com o horizonte.
COMPOSIÇÃO/ESTRUTURA TELHADO
TELHADO
ESTRUTURA
A estrutura é responsável pela sustentação da edificação. É o
sistema estrutural que recebe as cargas (peso próprio e
adicionais) e às transfere para o solo.
ESTRUTURA
Os Sistemas Estruturais variam de acordo com o material:
-Madeira
-Concreto armado
-Metal
-Outros: pedra, bambu...
A estruturas também podem ser mistas.Utilizar mais de um
material para formar o sistema.
ESTRUTURA DE MADEIRA
ESTRUTURA DE CONCRETO
ESTRUTURA METÁLICA
ESTRUTURA
DE BAMBU
ESTRUTURA MISTA
ELEMENTOS DA ESTRUTURA
LAJE
VIGA
PILAR
FUNDAÇÃO
SISTEMA ESTRUTURAL POR
PONTO DE APOIO
AS PAREDES SÃO SÓ VEDAÇÃO, ELAS E AS DIVISÓRIAS NÃO SUPORTAM
/SUSTENTAM O EDIFÍCIO.
LAJE
VIGA
PILAR
FUNDAÇÃO
SISTEMA ESTRUTURAL POR
PONTO DE APOIO
A VEDAÇÃO E AS DIVISÓRIAS SERVEM COMO
SUPORTE DO EDIFÍCIO
LAJE
PAREDE
FUNDAÇÃO
SISTEMA ESTRUTURAL POR
APOIO LINEAR
SISTEMA ESTRUTURAL POR
APOIO LINEAR
LAJE
Tem por finalidade receber as cargas e transferí-las para as
vigas ou paredes (laje de cobertura) ou para fundações (laje de
piso).
PODEM SER:
Plana (ou simples)
LAJE
Nervurada
LAJE
Grelhada
LAJE
Pré-moldada
VIGA
Elemento que tem a finalidade de receber as cargas e
transferí-las para os pilares ou outra viga.
As vigas variam de acordo com a seção:
-Perfil em “U”
-Perfil em “I”
-Perfil em “O”
-Perfil em “T”
VIGA
Perfil em “I” Perfil em “ T ”
PILAR
Elemento vertical de sustentação das vigas para
transferência de carga em direção a fundação.
Assim como as viga, variam de acordo com a seção.
FUNDAÇÃO
Elemento que transfere a carga da edificação para o solo. O que
define o tipo de fundação é tipo de solo do lote e o porte da
construção.
Podem ser classificadas basicamente em dois tipos:
RASA OU DIRETA
Sapata isolada, sapata corrida, radier, alicerce...
PROFUNDA OU INDIRETA
Estaca, broca, hélice contínua, tubulão...
FUNDAÇÃO RASA – SAPATA ISOLADA
Elemento de concreto armado
enterrado no solo que fica na base
dos pilares
FUNDAÇÃO RASA – SAPATA CORRIDA
Espécie de sapata prolongada que
difere da sapata isolado porque
ampara as paredes da casa. Muito
indicada para alvenarias estruturais
Espécie de laje de concreto armado que suporta as cargas das
alvenarias. Sua espessura varia de acordo com porte do
empreendimento
FUNDAÇÃO RASA – RADIER
FUNDAÇÃO PROFUNDA - BROCA
Tipo de fundação rudimentar
onde um trado manual abre um
furo na terra que é preenchido
com concreto e vergalhões.
Alcança no máximo 6m. Solução
para estruturas leves.
Evolução da broca pode chegar
a 10, 15m. Um tripé com um
tubo metálico abre um furo no
terreno que é preenchido com
concreto e vergalhões. Não
causa trepidação.
FUNDAÇÃO PROFUNDA – ESTACA STRAUSS
Peças prontas que são cravadas
com bate-estacas no solo.
Ultrapassam lençois freáticos, e
ideais para solos argilosos.
Causam barulho e vibrações.
FUNDAÇÃO PROFUNDA –
ESTACA DE CONCRETO PRÉ-MOLDADA
O trabalhador abre no solo um furo
com no mínimo 60cm de diâmetro
até a profundidade de projeto. Este
tudo é preenchido com concreto
armado.
FUNDAÇÃO PROFUNDA – TUBULÃO
Um trado helicoidal suspenso por uma
espécie de guindaste perfura o solo, a
medida que a hélice é retirada, sai a
terra. Tem poucas restrições, é rápida
e não causa barulho nem vibrações
FUNDAÇÃO PROFUNDA – HÉLICE CONTÍNUA
VIGA
PILAR
PLANTA PAVIMENTO TIPO
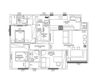
EXERCÍCIO
LOCALIZAR E INDICAR NA PLANTA 01 OS SEGUINTES ITENS:
01 - LINHA CONTÍNUA REPRESENTANDO
PAREDE CORTADA
02 - 1 LINHA DE PROJEÇÃO
03 - 1 JANELA ALTA
04 - 1 JANELA BAIXA
05 - 1 PORTA DE 0.60x2.10
06 - CARIMBO
07 - POLTRONA
08 – GELADEIRA
09 – VASO SANITÁRIO
10 – PILAR
11- PROJEÇÃO VIGA
07

07

  • 1.
    CURSO TÉCNICO EMTRANSAÇÕES IMOBILIÁRIAS DESENHO E ARQUITETURA Elisa Furian elisafurian@outlook.com COBERTURA E NOÇÕES DE ESTRUTURA
  • 2.
    COBERTURAS Constituem estruturas demúltipla função que tem por objetivo: Proteger a construção contra ação das intemperes (agentes externos) Definir o aspecto arquitetônico da estrutura do edifício Garantir o escoamento das águas pluviais.
  • 3.
    SUPERFÍCIES CURVAS -CASCAS Caracterizadas por estruturas de lajes em arcos, em concreto armado, tratadas com sistemas de impermeabilização.
  • 4.
    SUPERFÍCIES CURVAS -ABÓBADAS Cobertura composta por arcos sustentados em pilares ou paredes auto portantes.
  • 5.
    ABÓBADA DE BERÇOABÓBADA DE ARESTA SUPERFÍCIES CURVAS - ABÓBADAS
  • 6.
    É uma abóbadaque compreende 360 graus, um domo, uma semi esfera. SUPERFÍCIES CURVAS - CÚPULAS
  • 7.
  • 8.
    Caracterizadas pelo usode membranas plásticas (lonas), assentadas sobre estruturas metálicas , de madeiras ou atirantadas com cabos de aço - tensoestruturas, ou ainda, por sistemas infláveis com a utilização de motores insufladores. SUPERFÍCIES FLEXÍVEIS
  • 9.
  • 10.
  • 11.
    SUPERFÍCIES PLANAS –LAJE PLANA Possuem leve inclinação e são tratadas com sistemas de impermeabilização.
  • 12.
  • 13.
    SUPERFÍCIES PLANAS –LAJE INCLINADA São tratadas com sistemas de impermeabilização.
  • 14.
    TELHADOS São compostos portelhas e pelas estruturas de sustentação delas. São constituídos pela composição de planos inclinados. A inclinação das águas de um telhado corresponde às necessidades climáticas do lugar onde esrá sendo costruido.
  • 15.
    TELHADO ESTRUTURA EM MADEIRAESTRUTURA METÁLICA
  • 16.
  • 17.
    TELHADO - TESOURA Principalelemento de sustentação, transfere o peso do telhado para a estrutura do edifício.
  • 18.
    TELHADO - TRAMA Conjuntode peças onde se assentam as telhas. A trama se apoia nas tesouras. ripas caibros terças
  • 19.
    Terça da partemais alta do telhado TELHADO - CUMEEIRA CUMEEIRA
  • 20.
    CERÂMICA As telhas cerâmicas sãoas mais tradicionais CONCRETO MADEIRA FIBRO CIMENTO FIBRA NATURAL POLICARBONATO VIDRO TELHADO - TELHAS O tipo e material da telha usada depende de fatores como incidência de chuvas ou neve, temperaturas médias da região, tipologia da construção, vãos e disponibilidade de materiais e mão-de-obra no local
  • 21.
    CALHAS Elementos que captamas águas pluviais (chuva) provenientes do telhado e as conduzem através dos condutores verticais até o sistema de drenagem do edifício
  • 22.
    1 ÁGUA ÁGUAS Nome dadoaos diversos planos que compõem o telhado. 2 ÁGUAS
  • 23.
  • 24.
    BEIRAL Parte da coberturaque avança além dos alinhamento das paredes externas, protegendo-as contra a chuva. Geralmente avançam em torno de 60cm à 1.00m.
  • 25.
    São paredes como objetivo de esconder o telhado. PLATIBANDAS
  • 26.
    INCLINAÇÃO A inclinação éindicada pela porcentagem (%) = h/L Chama-se inclinação da cobertura o ângulo (α) formado pelos planos das coberturas com o horizonte.
  • 27.
  • 28.
  • 29.
    ESTRUTURA A estrutura éresponsável pela sustentação da edificação. É o sistema estrutural que recebe as cargas (peso próprio e adicionais) e às transfere para o solo.
  • 30.
    ESTRUTURA Os Sistemas Estruturaisvariam de acordo com o material: -Madeira -Concreto armado -Metal -Outros: pedra, bambu... A estruturas também podem ser mistas.Utilizar mais de um material para formar o sistema.
  • 31.
  • 32.
  • 33.
  • 34.
  • 35.
  • 36.
    SISTEMA ESTRUTURAL POR PONTODE APOIO AS PAREDES SÃO SÓ VEDAÇÃO, ELAS E AS DIVISÓRIAS NÃO SUPORTAM /SUSTENTAM O EDIFÍCIO. LAJE VIGA PILAR FUNDAÇÃO
  • 37.
  • 38.
    A VEDAÇÃO EAS DIVISÓRIAS SERVEM COMO SUPORTE DO EDIFÍCIO LAJE PAREDE FUNDAÇÃO SISTEMA ESTRUTURAL POR APOIO LINEAR
  • 39.
  • 40.
    LAJE Tem por finalidadereceber as cargas e transferí-las para as vigas ou paredes (laje de cobertura) ou para fundações (laje de piso). PODEM SER: Plana (ou simples)
  • 41.
  • 42.
  • 43.
  • 44.
    VIGA Elemento que tema finalidade de receber as cargas e transferí-las para os pilares ou outra viga.
  • 45.
    As vigas variamde acordo com a seção: -Perfil em “U” -Perfil em “I” -Perfil em “O” -Perfil em “T” VIGA Perfil em “I” Perfil em “ T ”
  • 46.
    PILAR Elemento vertical desustentação das vigas para transferência de carga em direção a fundação. Assim como as viga, variam de acordo com a seção.
  • 47.
    FUNDAÇÃO Elemento que transferea carga da edificação para o solo. O que define o tipo de fundação é tipo de solo do lote e o porte da construção. Podem ser classificadas basicamente em dois tipos: RASA OU DIRETA Sapata isolada, sapata corrida, radier, alicerce... PROFUNDA OU INDIRETA Estaca, broca, hélice contínua, tubulão...
  • 48.
    FUNDAÇÃO RASA –SAPATA ISOLADA Elemento de concreto armado enterrado no solo que fica na base dos pilares
  • 49.
    FUNDAÇÃO RASA –SAPATA CORRIDA Espécie de sapata prolongada que difere da sapata isolado porque ampara as paredes da casa. Muito indicada para alvenarias estruturais
  • 50.
    Espécie de lajede concreto armado que suporta as cargas das alvenarias. Sua espessura varia de acordo com porte do empreendimento FUNDAÇÃO RASA – RADIER
  • 51.
    FUNDAÇÃO PROFUNDA -BROCA Tipo de fundação rudimentar onde um trado manual abre um furo na terra que é preenchido com concreto e vergalhões. Alcança no máximo 6m. Solução para estruturas leves.
  • 52.
    Evolução da brocapode chegar a 10, 15m. Um tripé com um tubo metálico abre um furo no terreno que é preenchido com concreto e vergalhões. Não causa trepidação. FUNDAÇÃO PROFUNDA – ESTACA STRAUSS
  • 53.
    Peças prontas quesão cravadas com bate-estacas no solo. Ultrapassam lençois freáticos, e ideais para solos argilosos. Causam barulho e vibrações. FUNDAÇÃO PROFUNDA – ESTACA DE CONCRETO PRÉ-MOLDADA
  • 54.
    O trabalhador abreno solo um furo com no mínimo 60cm de diâmetro até a profundidade de projeto. Este tudo é preenchido com concreto armado. FUNDAÇÃO PROFUNDA – TUBULÃO
  • 55.
    Um trado helicoidalsuspenso por uma espécie de guindaste perfura o solo, a medida que a hélice é retirada, sai a terra. Tem poucas restrições, é rápida e não causa barulho nem vibrações FUNDAÇÃO PROFUNDA – HÉLICE CONTÍNUA
  • 56.
  • 57.
    EXERCÍCIO LOCALIZAR E INDICARNA PLANTA 01 OS SEGUINTES ITENS: 01 - LINHA CONTÍNUA REPRESENTANDO PAREDE CORTADA 02 - 1 LINHA DE PROJEÇÃO 03 - 1 JANELA ALTA 04 - 1 JANELA BAIXA 05 - 1 PORTA DE 0.60x2.10 06 - CARIMBO 07 - POLTRONA 08 – GELADEIRA 09 – VASO SANITÁRIO 10 – PILAR 11- PROJEÇÃO VIGA