1
MÁQUINAS TÉRMICAS
E
DE FLUXO
Federação das Indústrias do Estado de Minas Gerais - FIEMG
Belo Horizonte
2014
2
Presidente da FIEMG
Olavo Machado Júnior
Diretor Regional do SENAI
Lúcio José de Figueiredo Sampaio
Gerente de Educação Profissional
Edmar Fernando de Alcântara
3
Federação das Indústrias do Estado de Minas Gerais - FIEMG
MÁQUINAS TÉRMICAS
E
DE FLUXO
Elaboração
Aguilar de Oliveira Assis
Belo Horizonte
2014
4
© 2014. SENAI. Departamento Regional de Minas Gerais
SENAI/MG
Centro de Formação Profissional Américo Rene Giannetti
Ficha Catalográfica
SENAI.MG. Máquinas Térmicas e de Fluxo. Belo Horizonte: SENAI.MG, 2014. 93 p.
MECÂNICA – MÁQUINAS TÉRMICAS E DE FLUXO
CDU: 621
SENAI
Serviço Nacional de Aprendizagem
Industrial
Departamento Regional de Minas
Gerais
FIEMG
Av. do Contorno, 4456
Bairro Funcionários
30110-916 – Belo Horizonte
Minas Gerais
5
PPrreeffáácciioo
“Muda a forma de trabalhar, agir, sentir, pensar na chamada sociedade do
conhecimento”.
Peter Drucker
O ingresso na sociedade da informação exige mudanças profundas em todos os
perfis profissionais, especialmente naqueles diretamente envolvidos na produção,
coleta, disseminação e uso da informação.
O SENAI, maior rede privada de educação profissional do país, sabe disso, e
,consciente do seu papel formativo , educa o trabalhador sob a égide do conceito da
competência:” formar o profissional com responsabilidade no processo
produtivo, com iniciativa na resolução de problemas, com conhecimentos
técnicos aprofundados, flexibilidade e criatividade, empreendedorismo e
consciência da necessidade de educação continuada.”
Vivemos numa sociedade da informação. O conhecimento, na sua área tecnológica,
amplia-se e se multiplica a cada dia. Uma constante atualização se faz necessária.
Para o SENAI, cuidar do seu acervo bibliográfico, da sua infovia, da conexão de
suas escolas à rede mundial de informações – internet- é tão importante quanto
zelar pela produção de material didático.
Isto porque, nos embates diários, instrutores e alunos, nas diversas oficinas e
laboratórios do SENAI, fazem com que as informações, contidas nos materiais
didáticos, tomem sentido e se concretizem em múltiplos conhecimentos.
O SENAI deseja, por meio dos diversos materiais didáticos, aguçar a sua
curiosidade, responder às suas demandas de informações e construir links entre os
diversos conhecimentos, tão importantes para sua formação continuada !
Gerência de Educação Profissional
6
AAPPRREESSEENNTTAAÇÇÃÃOO
Esta apostila do Curso TÉCNICO EM MECÂNICA do SENAI.MG da disciplina de
Máquinas Térmicas e de Fluxo visa, além de transmitir os conhecimentos
específicos sobre seu assunto, preparar o aluno para o ambiente de trabalho,
despertando neste a visão prática dos assuntos correlacionados e trabalhando
estudos de caso que visam aplicar os conhecimentos adquiridos nesta disciplina.
Aguilar de Oliveira Assis
7
SUMÁRIO
1 TERMODINÂMICA ..............................................................................................11
1.1 CALOR E TEMPERATURA...............................................................................11
1.2 LEIS DA TERMODINÂMICA .............................................................................14
1.2.1 lei zero da termodinâmica ...........................................................................14
1.2.2 primeira lei da termodinâmica.....................................................................14
1.2.3 segunda lei da termodinâmica ....................................................................15
1.2.4 terceira lei da termodinâmica......................................................................15
1.3 TERMÔMETROS ..............................................................................................15
1.4 ESCALAS DE TEMPERATURA........................................................................16
1.5 TERMÔMETROS ..............................................................................................19
1.6 O COMPORTAMENTO INCOMUM DA ÁGUA .................................................20
1.7 CALORIMETRIA ...............................................................................................21
1.8 RELAÇÕES ENTRE AS UNIDADES DE CALOR .............................................22
1.9 CAPACIDADE TÉRMICA..................................................................................24
1.10 CALOR ESPECÍFICO .....................................................................................24
1.11 EQUAÇÃO FUNDAMENTAL DA CALORIMETRIA.........................................26
1.12 CALOR SENSÍVEL E CALOR LATENTE........................................................27
1.13 MUDANÇA DE ESTADO FÍSICO OU DE FASE ............................................27
1.14 CÁLCULO DA QUANTIDADE DE CALOR SENSÍVEL E LATENTE...............29
1.15 TABELA PRÁTICA PARA CÁLCULO DE MUDANÇA DE TEMPERATURA E
FASE (SÓLIDO, LÍQUIDO E GASOSO) .................................................................33
1.16 POTÊNCIA TÉRMICA.....................................................................................34
1.17 POTÊNCIA TÉRMICA – Ar condicionado .......................................................35
1.18 TRANSMISSÃO DE CALOR...........................................................................36
2 CALDEIRA A VAPOR (Gerador de Vapor)........................................................42
2.1 DEFINIÇÃO......................................................................................................42
2.2 EXEMPLOS DE APLICAÇÃO DO VAPOR .......................................................43
2.3 EXEMPLOS UMA TURBINA A VAPOR UTILIZADA EM UMA USINA
TERMELÉTRICA.....................................................................................................44
2.4 COMBUSTÍVEIS UTILIZADOS NAS CALDEIRAS............................................44
2.5 QUEIMADORES ...............................................................................................44
8
2.5.1 Queimador de óleo combustível .................................................................45
2.5.2 Queimador de combustíveis ......................................................................45
2.5.3 Queimador de carvão..................................................................................46
2.5.4 Queima em grelha .......................................................................................46
2.6 CLASSIFICAÇÃO DAS CALDEIRAS ................................................................47
2.6.1 Caldeiras aguatubolares..............................................................................47
2.6.2 Caldeiras flamotubulares ............................................................................49
2.6.3 Caldeiras elétricas........................................................................................50
2.7 DISPOSITIVOS DE SEGURANÇA EM CALDEIRAS........................................51
2.7.1 Os principais dispositivos e cuidados com a segurança ........................51
2.7.2 Algumas medidas de segurança no funcionamento da caldeira .............52
2.8 NR13 (CALDEIRAS E VASOS DE PRESSÃO)................................................53
2.8.1 Generalidades ..............................................................................................53
2.8.2 Profissional habilitado.................................................................................53
2.8.3 Pontos relevantes da NR 13 ........................................................................53
2.8.4 Identificação indelével .................................................................................54
2.8.5 Prontuário da caldeira..................................................................................54
2.8.6 Outros pontos relevantes............................................................................54
2.9 CICLO RANKINE ..............................................................................................55
2.9.1 Motores a vapor ...........................................................................................55
2.9.1.1 Generalidades ...........................................................................................55
2.9.1.2 Turbinas a vapor .......................................................................................55
2.9.1.3 Motores a vapor tipo pistão .....................................................................57
3 BOMBAS E INSTALAÇÕES HIDRÁULICAS......................................................58
3.1 CONSIDERAÇÕES GERAIS SOBRE BOMBAS HIDRÁULICAS......................58
3.1.1 Definição .......................................................................................................58
3.1.2 Classificação ................................................................................................58
3.2 TERMOS HIDRÁULICOS MAIS USADOS EM BOMBEAMENTO ....................64
3.2.1 Altura de sucção (AS) ..................................................................................64
3.2.2 Altura de recalque (AR)................................................................................65
2.2.3 Altura manométrica total (AMT) ..................................................................65
3.2.4 Perda de carga nas tubulações...................................................................65
9
3.2.5 Perda de carga localizada nas conexões ..................................................65
3.2.6 Comprimento da tubulação de sucção ......................................................66
3.2.7 Comprimento da tubulação de recalque ...................................................66
3.2.8 Golpe de aríete ............................................................................................66
3.2.9 Nível estático ...............................................................................................66
3.2.10 Nível dinâmico ...........................................................................................66
3.2.11 Submergência ............................................................................................66
3.2.12 Escorva da bomba......................................................................................67
3.2.13 Autoaspirante ...........................................................................................67
3.2.14 Cavitação ....................................................................................................67
3.2.15 NPSH ..........................................................................................................67
3.2.16 Válvula de pé ou de fundo de poço ..........................................................68
3.2.17 Crivo ............................................................................................................68
3.2.18 Válvula de retenção ...................................................................................68
3.2.19 Pressão a atmosférica ..............................................................................68
3.2.20 Registro.......................................................................................................69
3.2.21 Manômetro..................................................................................................69
3.2.22 Vazão...........................................................................................................69
3.2.23 Hidráulica ...................................................................................................69
3.2.24 MCA (mca)...................................................................................................69
3.2.25 Bomba de afogada .....................................................................................69
3.3 PROJETO HIDRÁULICO – DEFINIÇÕES.........................................................70
3.3.1 Potência absorvida (BHP) e rendimento (η) das bombas.........................70
3.3.2 Rendimento (η) .............................................................................................71
3.3.3 Exemplo ........................................................................................................72
3.3.3.1 Cálculo da potência ..................................................................................72
3.3.3.2 Cálculo do rendimento..............................................................................72
3.3.4 Perdas de carga (hf), nº de reynolds (Re), velocidade de escoamento (V),
diâmetros dos tubos, e altura manométrica total (AMT)....................................72
3.4 FATORES QUE INFLUENCIAM NAS PERDAS DE CARGA...........................73
3.5 Nº DE REYNOLDS (Re)....................................................................................75
3.6 VELOCIDADE DE ESCOAMENTO (V) ............................................................76
10
3.7 DIÂMETRO DOS TUBOS .................................................................................76
3.8 ALTURA MANOMÉTRICA TOTAL (AMT).........................................................77
3.9 ESQUEMA TÍPICO DE UMA INSTALAÇÃO HIDRÁULICA PARA CAPTAÇÃO
DE ÁGUA POR BOMBA CENTRÍFUGA .................................................................78
3.10 PROCEDIMENTOS BÁSICO PARA ESCOLHA DE UMA BOMBA
CENTRÍFUGA (PARA ALTURA DE SUCÇÃO INFERIOR A 8 mca) ......................79
3.10.1 Critérios.......................................................................................................79
2.10.2 Exemplo ......................................................................................................80
3.10.3 Cálculo .......................................................................................................80
3.11 QUADRO PRÁTICO PARA CÁLCULO DO SISTEMA HIDRÁULICO COM
BOMBA CENTRÍFUGA ...........................................................................................84
3.12 QUADRO PRÁTICO PARA CÁLCULO ...........................................................85
REFERÊNCIAS ......................................................................................................87
ANEXO ...................................................................................................................90
11
1 TERMODINÂMICA
Fonte: http://blog.poloar.com.br/ar-condicionado-fujitsu-como-funciona-um-ar-condicionado/
1.1 CALOR E TEMPERATURA
Alguns conceitos básicos:
 Calor: é o termo associado à transferência de energia térmica de um sistema
a outro ou entre partes de um mesmo sistema, em virtude da diferença de
temperaturas entre eles. Designa também calor como sendo a quantidade de
energia térmica transferida em tal processo.
 Energia Térmica: é o estado de agitação das partículas. Pode-se também
definir com o somatório das energias de um sistema, ou ainda a médicas das
energias de um sistema.
12
 Temperatura: Temperatura é uma grandeza física que mensura a energia
térmica contida nos corpos ou em um sistema.
Todos os corpos possuem Energia Térmica.
Quanto maior a temperatura, maior a agitação das partículas.
Com o aumento de energia térmica, a temperatura:
o Aumenta se não estiver em mudança de estado
o Mantém constante até completara mudança de estado
Podemos sentir as diferenças de temperatura por comparação:
o Nosso corpo possui temperatura aproximada de 36,5º
o Se mergulharmos a mão em uma vasilha com água a 50º podemos
dizer que a água está “quente”.
 Outro teste: Faça o seguinte experimento e comprove isso. Coloque três
vasilhas sobre a mesa. Uma com água fria (água com gelo), outra com água
quente e a terceira com água morna. Ponha uma das mãos dentro da vasilha que
contém água fria e a outra, em água quente, deixando-as lá por alguns segundos
(veja a ilustração abaixo):
Fonte: BERNUY
13
Em seguida retire as mãos dessas vasilhas e mergulhe–as na água morna.
Ambas as mãos sentem a mesma temperatura? Apesar de ambas as mãos
terem sido colocadas numa mesma vasilha de água morna, cada uma dará
informação diferente: a mão que estava acostumada à água fria lhe informará
uma temperatura maior do que a mão que estava em contato com a água
quente. Certamente, essas sensações estão lhe fornecendo informações
falsas, pois a água morna se encontra a uma temperatura uniforme.
 Dois corpos com temperaturas diferentes em contato trocam calor entre si até
haver equilíbrio térmico, do mais aquecido passa para o corpo menos aquecido:
Fonte: BERNUY
14
1.2 LEIS DA TERMODINÂMICA
A termodinâmica é baseada em leis estabelecidas experimentalmente:
1.2.1 Lei Zero da Termodinâmica
EQUILÍBRIO TÉRMICO - Quando dois sistemas em equilíbrio termodinâmico têm
igualdade de temperatura com um terceiro sistema também em equilíbrio, eles têm
igualdade de temperatura entre si.
Esta lei é a base empírica para a medição de temperatura. Ela também estabelece o
que vem a ser um sistema em equilíbrio termodinâmico: dado tempo suficiente, um
sistema isolado atingirá um estado final - o estado de equilíbrio termodinâmico.
Em outras palavras, a lei zero da termodinâmica quer dizer que há uma tendência
natural em quaisquer substâncias e ou ambientes, de trocar calor por um tempo
necessário até que haja equilíbrio, sempre que houver duas ou mais substâncias ou
sistemas com temperaturas diferentes.
A lei zero da termodinâmica define os medidores de temperatura, os
TERMÔMETROS.
1.2.2 Primeira Lei da Termodinâmica
CONSERVAÇÃO DA ENERGIA - É o princípio da conservação da energia e da
conservação da massa: "A energia do Universo, sistema mais vizinhança, é
constante".
Mesmo em situações em que dizemos que há perda de rendimento, isto quer dizer
que a energia que não foi aproveitada para a realização de um determinado
trabalho, foi desviada pelo atrito entre as peças, inércia dos corpos para iniciar ou
cessar movimento, etc.
15
1.2.3 Segunda Lei da Termodinâmica
O SENTIDO DA TROCA DE CALOR - Afirma que há processos que ocorrem numa
certa direção mas não podem ocorrer na direção oposta. Isto quer dizer que sempre
o corpo mais aquecido sede calor ao menos aquecido, e nunca o contrário.
1.2.4 Terceira Lei da Termodinâmica
ZERO ABSOLUTO: estabelece um ponto de referência absoluto para a
determinação da entropia, representado pelo estado derradeiro de ordem molecular
máxima e mínima energia. Enunciada como "A entropia de uma substância cristalina
pura na temperatura zero absoluto é zero".
A terceira lei da termodinâmica ainda afirma que no zero absoluto, há total
paralização atômica e total falta de energia.
1.3 TERMÔMETROS
Termômetros são instrumentos utilizados para medir a temperatura de corpos ou
sistemas.
A maioria dos termômetros utiliza o fenômeno de dilatação dos corpos para medir
uma temperatura. Neste caso, uma medição de temperatura é feita por comparação:
 Uma escala é feita baseada em parâmetros: ex.: temperatura de fusão da
água, de ebulição, etc.
 Unidades de temperaturas mais comuns:
o ºC (graus Celsius) convencionada pelo SI => 0ºC na fusão da água a 1
atm (nível do mar), 100ºC de ebulição e divisão de 1º
o ºF (graus Fahrenheit) USA e países de língua inglesa => 32ºF na fusão da
água a 1 atm (nível do mar), 212ºF de ebulição e divisão de 1º
16
Temperatura do corpo humano... ºF => ºC
o ºK (graus Kelvin) => 0ºK = zero absoluto = -273ºC
ºC = ºK + 273
 FÓRMULA GERAL => ºC  ºF  ºK:
EXERCÍCIOS (CONVERTER):
85 ºK em ºC e ºF: 49 ºC em ºF e ºK:
150 ºF em ºC e ºK 125 ºC em ºK e ºF
1.4 ESCALAS DE TEMPERATURA
Para a maior parte das pessoas a temperatura é um conceito intuitivo baseado nas
sensações de "quente" e "frio" proveniente do tato. De acordo com a segunda lei da
termodinâmica, a temperatura está relacionada com o calor ficando estabelecido que
este, na ausência de outros efeitos, flui do corpo de temperatura mais alta para o de
temperatura mais baixa espontaneamente.
O funcionamento dos termômetros está baseado na lei zero da termodinâmica, pois
são colocados em contato com um corpo ou fluido do qual se deseja conhecer a
temperatura até que este entre em equilíbrio térmico com o respectivo corpo. A
escala do aparelho foi construída comparando-a com um termômetro padrão ou com
pontos físicos fixos de determinadas substâncias.
Nas duas páginas seguintes, segue exemplo de três escalas de temperatura que
são hoje mais usadas utilizadas e os correspondentes entre estas temperaturas
entre si. São elas: KELVIN ( ºK ), escala Celsius ( ºC) e Fahrenheit (ºF).
17
Fonte: Acervo Próprio
18
Fonte: Acervo Próprio
19
1.5 TERMÔMETROS
Definição: É todo instrumento utilizado para medir a temperatura de um corpo ou
sistema.
 Tipos de termômetros (faixas de temperaturas):
o Líquidos em vidro (ex.: mercúrio)
o Termômetro para o corpo humano
o Termômetro de mínima e máxima
o Termômetro de gás a volume constante
o Termômetro bi-metálico (de ponteiro)
o Termômetro de resistência (melhor precisão)
o Termômetro laser
Fonte: RUNTAL. (Site)
20
 CONSTRUÇÃO DE UM TERMÔMETRO:
Como já exposto anteriormente, a medição de uma temperatura é forma de forma
indireta e por comparação:
o Volume de um líquido altera-se conforme a temperatura;
o Comprimento de uma barra;
o Resistência elétrica de um determinada condutor varia conforme a
temperatura;
o Volume / pressão de um gás;
o Cor de uma determinada substância.
Desta forma, para se construir um termômetro, utiliza-se destes materiais com suas
propriedades naturais, fazendo comparações com a água, por exemplo. Em suas
diversas fazes. Exemplo:
o Escolhe-se um termômetro de coluna de álcool colorido de vermelho;
o Coloca-se este termômetro em uma água misturada com gelo ao nível
do mar (nestas condições sabe-se que a temperatura está a 0ºC;
o Marca-se na escala do termômetro uma referência onde na altura da
coluna de álcool colorido;
o Aquece-se a água até o ponto de ebulição ao nível do mar, onde
sabemos que a temperatura será de 100ºC;
o Marca-se uma graduação no termômetro no local onde dilatou o álcool
líquido;
o Divide-se a distância marcada entre 0ºC e 100ºC em 100 partes,
obtendo-se assim uma escala do termômetro.
1.6 O COMPORTAMENTO INCOMUM DA ÁGUA
Líquidos geralmente aumentam em volume com o aumento de temperatura e têm
coeficientes médios de expansão de volume dez vezes maiores do que dos sólidos.
A água fria é uma exceção a regra: Conforme a temperatura aumenta de ºC até 4
21
ºC, a água se contrai, e então, a sua densidade aumenta. Acima de 4º C, a água se
expande com o aumento da temperatura e, então, sua densidade diminui. Portanto,
a densidade da água atinge o valor máximo e 1 g / cm3
a 4 ºC.
Podemos usar este comportamento incomum de expansão térmica da água para
explicar porque uma lagoa começa a congelar na superfície em vez de no fundo.
Quando a temperatura do ar cai de, por exemplo, 7ºC para 6ºC, a água da superfície
também esfria e, consequentemente, diminui em volume. A água da superfície é
mais densa que abaixo da superfície, que não esfriou, e diminui de volume. Como
resultado, a água da superfície afunda, e a mais quente do fundo se move para a
superfície. Quando a temperatura do ar está entre 4ºC e 0ºC, no entanto, a água da
superfície se expande a medida que se esfria, ficando menos densa que abaixo da
superfície.
O processo de mistura para, e eventualmente a água da superfície congela. A
medida que a água congela, o gelo permanece na superfície, porque é menos denso
que a água. O gelo continua a se acumular na superfície, enquanto a água perto do
fundo permanece a 4ºC. Se não fosse esse o caso, peixes e outras formas de vida
marinha não sobreviveriam.
1.7 CALORIMETRIA
 Calorimetria é a parte da termodinâmica que estuda a medida das
quantidades de calor que são trocadas entre sistemas, colocados em contato,
a diferentes temperaturas (TROCAS DE CALOR E SUAS RELAÇÕES).
 QUANTIDADE DE CALOR:
o É aquela capaz de alterar uma temperatura
o Ou também é capaz de mudar um estado físico de um corpo
22
 UNIDADES DE CALOR:
Calor é uma forma de energia. Portanto, pode ser medida como as demais,
como a energia mecânica, elétrica, etc.
 Na refrigeração as unidades de calor são mais usadas são:
o Cal, Kcal (SI – Sistema Internacional);
o CALORIA (cal): É a quantidade de calor necessária para elevar de
14,5ºC a 15,5ºC a temperatura de 1 grama de água pura sob pressão
normal (nível do mar ou 1 atm), e vice versa;
o Btu (Sistema Britânico)
o Btu (BRITISH THERMAL UNIT): É a quantidade de calor necessária
para aquecer 1 lb (libra-massa = 454 g) de água pura, de 58,5ºF a
59,5ºF, sob pressão normal (nível do mar ou 1 atm), e vice versa.
1.8 RELAÇÕES ENTRE AS UNIDADES DE CALOR
É muito comum manuais técnicos de refrigeração utilizarem variadas unidades de
calor;
As unidade mais comuns de calor são: Joule, BTU e Cal. Desta forma, torna-se
bastante interessante conhecer as relações ou equivalências entre estas principais
unidades de calor. Na tabela a seguir serão demonstradas as principais relações
entre estas escalas de calor.
23
EXERCÍCIOS (CONVERTER):
274.965 cal para Kcal e BTU: 10.000 BTU para Kcal:
3.500 BTU para cal: 456.898 cal para BTU:
24
1.9 CAPACIDADE TÉRMICA
o Capacidade Térmica é o quociente entre a quantidade de calor (Q) trocada
pelo corpo e a correspondente variação de sua temperatura (∆t)
o C = Q / ∆t
o Unidades de capacidade térmica: cal / ºC; Kcal / ºC; J / ºC; Btu / ºF
1.10 CALOR ESPECÍFICO
o Calor Específico é a quantidade de calor necessária para fazer a
temperatura de 1g da substância variar 1ºC;
o Unidades de calor específico: cal / gºC; Kcal / KgºC; J / KgºC; Btu / lbºF
o Os metais têm baixo calor específico: com pequenas quantidades de calor
variam grandes temperaturas
o Para os gases, o calor específico varia com a pressão e o volume
o O calor específico depende do estado físico do sistema, sendo maior no
estado líquido do que no estado sólido
o O calor específico nos sólidos e líquidos variará consideravelmente se a
variação de temperatura for muito grande
o Cada substância tem o seu calor específico, conforme tabela de algumas
substâncias na página seguinte:
25
Fonte: SENAI.MG. 2001
26
1.11 EQUAÇÃO FUNDAMENTAL DA CALORIMETRIA
Esta fórmula expressa a quantidade de calor (Q) fornecida ou retirada de um corpo
de massa (m) e de calor específico (c) quando este corpo sofre uma variação de
temperatura (∆t):
 Onde:
o Q = Quantidade de calor fornecida ou retirada
o m = massa
o c = calor específico
o ∆t = quantidade de variação da temperatura
 Aplicações da equação fundamental da Calorimetria:
o EXERCÍCIO 1:
Temos 800 gramas de massa de água a 100 ºC. Quantas calorias essa
quantidade de água deve perder para ficar com a temperatura de 10 ºC?
Dado: c = 1 cal / g ºC
27
o EXERCÍCIO 2: Calcular a quantidade de calor necessária para elevar a
temperatura de 200 g de massa de água de 20 ºC para 80 ºC:
Dado: c = 1 cal / g ºC
1.12 CALOR SENSÍVEL E CALOR LATENTE
o Calor SENSÍVEL: É o calor necessário para alterações de temperatura
(∆t ) para mais ou para menos (sem mudança de estado). É utilizada a
fórmula da Equação fundamental da Calorimetria: Q = m . c . ∆t
o Calor LATENTE: É o calor necessário para a mudança de estado, não
havendo alteração de temperatura nesta fase. É utilizada a fórmula da
Equação fundamental da Calorimetria sem a variação da temperatura:
Q = m . c (onde “c” é o calor latente para alteração de fase).
Portanto, quando um corpo cede ou recebe calor, este pode produzir no corpo dois
efeitos diferentes: variação de temperatura ou mudança de estado.
Se o efeito no corpo for apenas variação de temperatura é chamado de Calor
Sensível. Porém, se o efeito no corpo for de mudança de estado é chamado de
Calor Latente.
1.13 MUDANÇA DE ESTADO FÍSICO OU DE FASE
 A matéria pode apresentar-se em três estados físicos:
o Sólido
o Líquido
o Gasoso
 Uma mesma substância pode ser encontrada na natureza nas três formas,
conforme a temperatura e / ou pressão em que se ela encontra:
28
Fonte: COLÉGIO WEB. (Site)
 As mudanças de estado recebem nomes especiais:
o Evaporação: Mudança de estado líquido para estado gasoso
lentamente em qualquer temperatura (apenas na superfície do líquido)
o Ebulição: Mudança de estado líquido para gasoso (elevando a
temperatura até o ponto de ebulição) E.: Água fervendo.
o Calefação: Mudança de estado líquido para gasoso bruscamente
numa temperatura maior que a temperatura de ebulição (Ex.: Jogar
água em uma chapa aquecida)
o Liquefação: Mudança de estado de gasoso para líquido (Ex.:
condensação da água)
29
o Fusão: Mudança de estado de sólido para líquido (Ex.: Gelo passando
para água)
o Solidificação: Mudança de estado de líquido para sólido (Ex.: Água
passando para gelo)
o Sublimação: Mudança de estado de Sólido para gasoso (Ex.:
Naftalina)
o Resublimação: Mudança de estado de Gasoso para sólido (Ex.: Gelo
seco)
1.14 CÁLCULO DA QUANTIDADE DE CALOR SENSÍVEL E LATENTE
Quando deseja-se elevar ou abaixar a temperatura de uma determinada substância,
onde a mesma irá também passar por mudança de fase, esta será calculada em
separado e somados os resultados.
Exemplo:
Elevar a temperatura de 75 g de massa (m) de água de -20 ºC até 40 ºC. Este
cálculo ocorrera em 3 etapas, como pode-se ver no gráfico a seguir:
Fonte: Acervo Próprio
30
Desta forma, haverá um cálculo de -20 ºC até 0 ºC (Calor sensível), a temperatura
irá se manter constante até a fusão de toda a massa de água (calor latente de fusão)
e haverá um cálculo para esta mudança de fase. Após, ocorrerá o aumento da
temperatura de 0 ºC 40 ºC e um cálculo correspondente para este aumento de
temperatura (calor sensível). Enfim, os 3 resultados deverão ser somados para se
saber a quantidade de calor necessária para estas etapas.
o Fórmula para este caso:
Fonte: Acervo Próprio
NOTA: Como a água estará em várias faixas de temperaturas (∆t) e 2 estados
(sólido e líquido), em cada situação se deverá utilizar o calor específico
correspondente da água, como na tabela abaixo:
31
Fonte: SENAI.MG. 2001
Assim fica o cálculo:
Ou
9 825 x 0,003968 = 38,99 BTU
32
EXERCÍCIOS:
Faça os cálculos e o gráfico representativo para os exercícios abaixo:
1) Calcule as calorias necessárias para baixar a temperatura de 1.250 g de
massa de água de 135 ºC até 35 ºC:
2) Calcule a quantidade de calor necessária para elevar a temperatura de 1 litro
de água de 25 ºC até 100 ºC:
33
1.15 TABELA PRÁTICA PARA CÁLCULO DE MUDANÇA DE TEMPERATURA E
FASE (SÓLIDO, LÍQUIDO E GASOSO)
Considere a situação conforme o gráfico abaixo, de 3 faixas de elevação ou
diminuição de temperatura (∆t) e 2 mudanças de estado (mudanças de fase):
Fonte: Acervo próprio
Com o objetivo de facilitar o cálculo da quantidade de calor necessária, utilizaremos
a tabela a seguir, fazendo um cálculo de -10 ºC até 120 ºC de 250 g de massa de
água, ao nível do mar:
Fonte: Acervo próprio
34
 EXERCÍCIO:
Preencha a tabela de cálculo abaixo, calculando a quantidade de calor necessária
para elevar a temperatura de -34 ºC até 133 ºC de 1,50 litros de água ao nível do
mar:
Fonte: Acervo Próprio
1.16 POTÊNCIA TÉRMICA
A potência térmica mede a rapidez com que o calor é trocado entre dois corpos.
Para determinar a potência térmica de uma fonte térmica que fornece uma
quantidade de calor Q num intervalo de tempo ∆t, faz-se a razão entre as grandezas:
Onde:
P = Potência Térmica
Q = Quantidade de Calor
∆t = Quantidade de temperatura para elevar ou retirar.
35
A potência é dada no SI por watt (W), mas usualmente tem-se: cal/s; cal/min;
kcal/min.
No Brasil, apesar de ser adepto ao Sistema Internacional (SI), na área da
refrigeração é muito comum se utilizar a unidade BTU / h.
 EXERCÍCIOS:
01 – Utilizando uma fonte de calor de 5 Kcal / hora, quanto tempo levará para trocar
180 Kcal de uma determinada substância?
02 – Quanto tempo levará para resfriar 50 litros de água de um bebedouro de 30ºC
para 5ºC utilizando um equipamento de capacidade igual a 20.000 BTU?
1.17 POTÊNCIA TÉRMICA – Ar condicionado
No ramo da atividade Refrigeração para cálculo de dimensionamento de aparelhos,
instalações, etc., utiliza-se a Tonelada de refrigeração (TR):
1 TR = 12.000 BTU
36
Para dimensionamento de um cômodo de uma casa normal (altura do teto
aproximadamente 3 metros, 1 TR tem capacidade de refrigerar um cômodo de14 m2
,
gastando um tempo aproximado de 1 hora para aclimatar todo o ambiente.
Em situações onde a altura do teto seja diferente de 3 metros e haja outras
interferências, como, portas abertas ou objetos que emitam fonte de calor
considerável, pode-se adicionar um fator proporcional a estas variáveis.
Para cálculos mais complexos, utiliza-se outros métodos que não fazem parte da
grade curricular deste curso.
 EXERCÍCIOS:
01 – Quanto tempo levará para Climatizar uma sala de 3,5 metros X 4,5 metros
utilizando um aparelho de ar condicionado de 8.000 BTU?
02 – Calcular a quantidade de BTU necessária para climatizar um auditório com
10 metros de largura por 25 metros de comprimento (altura do teto = 4,5 metros =>
fazer uma regra de três simples). Após, distribuir em quantidades de aparelhos de ar
condicionado encontrados no mercado, considerando também uma boa distribuição
dos aparelhos no ambiente.
1.18 TRANSMISSÃO DE CALOR
Transmissão de calor é a passagem de energia térmica de um corpo para o outro,
ou uma parte para o mesmo corpo. A transmissão de calor se dá dos pontos de
maior temperatura para os de menor temperatura.
Enquanto a Calorimetria estuda quantitativamente a troca de calor entre corpos de
diferentes temperaturas, a Transmissão de Calor estuda o fluxo de energia através
dos corpos em função do tempo.
37
 FORMAS DE TROCAS DE CALOR:
o Condução ou Contato: Esta transmissão se dá em qualquer estado
físico que um corpo se encontra, ou seja: sólido, líquido ou gasoso.
Os sólidos são melhores condutores que os líquidos que, por sua vez,
são melhores condutores que os materiais gasosos.
Existem bons condutores de fluxo de calor, como os metais; há
também maus condutores, ou isolantes, que dificultam esse fluxo. Uma
utilização prática desta lei da física são os Trocadores de Calor:
Fonte: OPTEK. (Site)
o Convecção ocorre nos Fluidos, Líquidos ou gases. Este fenômeno da
física ocorre devido a diferença de densidade das próprias substâcias
em função da temperatura, ou seja: A moléculas de uma mesma
substância aquecida sobem, fazendo com que as menos aquecidas
possam descer.
Exemplos: Uma vasilha de água em ebulição, o evaporador de uma geladeira
(congelador) na parte de cima para o ar mais frio descer, um balcão de frios em um
supermercado, um sistema de aquecedor solar, etc.
38
Figura ilustrativa de um aquecedor solar:
Fonte: BRASIL ESCOLA. (Site)
o Radiação ou Irradiação – Esta transmissão de calor se dá por ondas
eletromagnéticas. Esta ocorre em qualquer meio, inclusive o vácuo,
desde que não seja “refletido”).
39
Desta forma entendemos como o calor do sol chega até nós:
Fonte: BRASIL ESCOLA. (Site)
Uma aplicação prática das três formas de transmissão de calor é o funcionamento
do isolamento térmico de uma garrafa de café:
Fonte: BRASIL ESCOLA. (Site)
A construção da garrafa evita as três formas de transmissão de calor. A qualidade da
conservação da temperatura do café irá depender dos materiais utilizados na
fabricação da mesma.
40
 FUNCIONAMENTO DE UM REFRIGERADOR DOMÉSTICO:
Nos refrigeradores domésticos existe muita "física" há no seu funcionamento. Eles
são máquinas térmicas que retiram calor de um certo interior jogando-o no meio
externo, produzindo assim o "frio" no interior.
Abaixo, um esquema básico de funcionamento de um refrigerador:
Fonte: CEPA. USP (Site)
Na física, todo líquido quando evapora retira calor. O compressor, ao elevar a
pressão de um gás, o faz passar para o estado liquido e o faz fluir por tubos até o
evaporador (congelador). Ao passar pela válvula de expansão no evaporador, o
líquido volta para o estado gasoso onde retira calor do evaporador, baixando a sua
temperatura. É bom lembrar que a saída do compressor gera pressão e a entrada
gera sucção, facilitando a evaporação dos gases (para volta-lo para o estado
líquido).
41
As principais partes e finalidades de um refrigerador são:
 Compressor: é responsável pela elevação da pressão até 10 atmosferas
e sua temperatura está aproximadamente a 41 ºC;
 Condensador: faz com que o gás passe para o estado líquido ainda em
alta pressão e então o líquido passa para o tubo capilar;
 Tubo capilar: ao sair dele terá sua pressão e temperatura diminuídas
alcançando valores próximos de 1,6 atmosferas e - 19 ºC, nesta situação
passa para o evaporador;
 Evaporador: onde retorna ao estado gasoso e agora esta mudança de
fase ocorre a baixa pressão. É no evaporador que o gás recebe calor dos
alimentos colocados no interior da geladeira, retirando calor da parte
interna, então, podemos perceber que a "produção de frio" ocorre no
evaporador.
42
2 CALDEIRA A VAPOR (Gerador de Vapor)
Fonte: SERMATEC. (Site)
2.1 DEFINIÇÃO
Caldeira é um gerador de vapor, que aplica energia térmica a água para a geração
do mesmo.
Em outras palavras: trata-se de uma máquina ou dispositivo de engenharia onde a
energia química, através da queima de um combustível, transforma-se em energia
térmica.
O vapor é amplamente utilizado na indústria, tanto para aquecimento, quanto para
acionamento mecânico, e geração de energia.
43
O vapor d´água é preferido dentre outras substâncias em função de seu alto calor
específico aliado a ampla disponibilidade da água no meio industrial.
Uma caldeira é constituída, basicamente, por um vaso fechado sob pressão, no qual
se introduz água líquida que se transforma em vapor ao receber o calor da
combustão na fornalha.
2.2 EXEMPLOS DE APLICAÇÃO DO VAPOR
 Aquecimento
 Acionamento Mecânico
 Geração de Energia Elétrica
 Aplicação na Indústria:
o Têxtil: tinturaria
o Alimentos: Processo de industrialização.
o Bebidas : lavação de garrafas; tanques de xaropes, pasteurizadores.
o Papel: Obtenção da celulose, fabricação e secagem do papel.
o Indústria Madeireira: cozimento de toras; secagem de tábuas e
o Lâminas em estufas; em prensas para compensados.
o Indústria de vulcanização e recauchutagem: estufas para secagem
de pneus, vulcanização, prensas.
o Metalúrgica
o Química.
 Hospitais: na lavanderia para esterilização de roupas, na cozinha.
44
2.3 EXEMPLOS UMA TURBINA A VAPOR UTILIZADA EM UMA USINA
TERMELÉTRICA
Fonte: BLOG DO PROFESSOR CARLÃO. (Blog)
2.4 COMBUSTÍVEIS UTILIZADOS NAS CALDEIRAS
O combustível é toda substância capaz de reagir quimicamente com o oxigênio
(comburente) e liberar energia térmica (calor), é identificado como combustível:
 Sólido: Madeira, cascas de árvores, carvão, bagaço de cana, etc.
 Líquido: Óleo combustível (óleo grosso), óleo diesel, álcool, etc.
 Gasoso: Gás Natural.
2.5 QUEIMADORES
Os queimadores são os dispositivos da caldeira utilizados para queimar o
combustível. Os tipos de queimadores variam conforme o tipo de combustível a ser
queimado.
45
2.5.1 Queimador de óleo combustível
O queimador de óleo combustível e na maioria dos combustíveis líquidos consiste
em uma bomba para pressurizar o combustível e um bico injetor para pulverizá-lo
em alta pressão na câmara de combustão.
Fonte: BABCOCK CALDEIRAS LTDA. (Site)
2.5.2 Queimador de combustíveis
Diferentemente da queima dos combustíveis líquidos, a combustão dos gases ocorre
sem as etapas de nebulização e destilação das gotículas de combustível.
Fonte: BABCOCK CALDEIRAS LTDA. (Site)
46
2.5.3 Queimador de carvão
É comum a utilização de carvão em caldeiras de forma pulverizada. Na figura a
seguir tem-se um esquema do sistema de pulverização de carvão em uma caldeira.
Fonte: BABCOCK CALDEIRAS LTDA. (Site)
2.5.4 Queima em grelha
As grelhas são dispositivos tipo grade, podendo ser fixas ou móveis, onde são
queimados os seguintes combustíveis:
 Madeira picada em cavacos
 Madeira cortada em pedaços maiores (lenha)
 Madeira tipo cerragem
 Casca de Arroz
 Bagaço de Cana
Fonte: BABCOCK CALDEIRAS LTDA. (Site)
47
2.6 CLASSIFICAÇÃO DAS CALDEIRAS
As caldeiras são classificadas em aquatubolares, flamotubulares, e elétricas:
2.6.1 Caldeiras aguatubolares
Neste tipo de caldeira a água circula por dentro de diversos tubos, posicionados lado
a lado, formando uma parede do tipo feixe tubular. Os tubos são aquecidos pelo
calor da fornalha, transformando a água dentro do tubo em vapor.
Fonte: EBAH. (Site)
As unidades geradoras de vapor, também chamadas simplesmente de caldeiras,
podem ser equipadas com os seguintes componentes:
 Fornalha: Local onde ocorre a queima de combustível, pode ter queimadores
de gás, de óleo, ou grelha para combustíveis sólidos.
 Caldeira: É o local onde a água se transforma de líquido para vapor, contém
tubos, tambor separador e parede isolante.
 Superaquecedor: São tubos em feixes utilizados para aumentar a
temperatura do vapor na saída da caldeira.
48
 Atemperador: É um sistema de regulagem da temperatura final do vapor
gerado, reduz a temperatura através da injeção de água no vapor
superaquecido.
 Economizador: É um sistema de pré-aquecimento da água de entrada da
caldeira, composta de tubos instalados na saída dos gases, tem a função de
aumentar o rendimento da caldeira, e reduzir o choque térmico devido a
entrada de água no sistema.
 Aquecedor de ar: Aproveita o calor dos gases da saída da combustão para
aquecer o ar de entrada.
Na figura a seguir tem-se um exemplo de unidade geradora de vapor completa.
Fonte: SERMATEC. (Site)
49
2.6.2 Caldeiras flamotubulares
São equipamentos geradores de vapor de uso limitado às instalações de pequeno
porte, com pressões inferiores a 15 bar ou capacidades inferiores a 15 ton/h de
vapor saturado.
Nas caldeiras flamotubulares os gases de combustão circulam por dentro dos tubos.
Podem ser projetadas para um ou mais passe de gases de combustão.
O nível de água deve estar sempre acima da tubulação para evitar
superaquecimento.
A fornalha pode ser interna ou externa. Caldeiras com fornalha interna são
conhecidas como Escocesas e são projetadas para queima de óleo ou gás natural.
Apresentam rendimento de até 84% e operam com pressão de até 15 bar (1500
kPa).
O diâmetro das fornalhas pode variar de 400mm a 1300mm e são projetadas e
construídas com paredes corrugadas para melhorar o rendimento térmico e a para
admitir maiores pressões. Paredes lisas devem ser evitadas.
O diâmetro do corpo cilíndrico pode variar de 900mm a 2800mm.
O diâmetro dos tubos pode variar de 30mm a 100mm.
Em termos gerais as caldeiras flamotubulares apresentam menores gastos com
manutenção.
O tratamento químico da água é importante.
50
Na figura a seguir temos um exemplo de caldeira flamotubular:
Fonte: SERMATEC. (Site)
2.6.3 Caldeiras elétricas
Utilizam Resistências Tubulares de Imersão ligados a energia elétrica para
aquecimento da água no interior das caldeiras.
As resistências de imersão são fabricadas em tubos de cobre, aço inox e ferro. As
mais usadas em caldeiras são as de cobre.
Abaixo os tipos de resistências elétricas utilizados em caldeiras.
Fonte: IMC. Resistências Elétricas. (Site)
51
Abaixo, um diagrama de distribuição das resistências no interior de um vazo de
pressão de uma caldeira elétrica.
FULTON. (Site)
2.7 DISPOSITIVOS DE SEGURANÇA EM CALDEIRAS
As caldeiras possuem uma série de dispositivos para garantir a sua segurança de
funcionamento. Á manutenção deve manter o equipamento e os dispositivos em
perfeito funcionamento para garantir a sua segurança.
2.7.1 Os principais dispositivos e cuidados com a segurança
 Controle do nível de água, que pode ser do tipo automático com reguladores
pneumáticos, termohidráulico, ou manual com visor de nível.
 Controle de pressão de trabalho, pressostatos e manômetros. Em casos de
pressão excessiva um dispositivo pode reduzir o combustível, ou o fluxo de ar
para os queimadores.
52
 Válvulas de segurança, são dispositivos auxiliares, previstos para atuarem em
caso de falha do sistema de controle da combustão, evitando aumento
excessivo da pressão.
 Sopradores de fuligem: tem a finalidade de evitar que ocorra depósito de
cinzas nas paredes externas dos tubos.
2.7.2 Algumas medidas de segurança no funcionamento da caldeira
 Quando a pressão estiver próxima a de trabalho abre-se lentamente a válvula
de vapor para evitar golpe de aríete
 Observa-se atentamente os manômetros e o indicador de nível.
 O operador de caldeira não deve se afastar do local de trabalho.
 Faz-se anotações diárias e verifica-se o funcionamento de todos os
acessórios e equipamentos.
 Dá-se descarga manual nas válvulas de segurança pelo menos uma vez por
dia.
 Em caldeiras aquotubulares limpa-se os tubos com soprador de fuligem.
 Não perder o controle do nível da água.
 Adiciona-se corretamente os produtos para tratamento da água.
 Segue-se as orientações da CIPA e colabora-se com ela.
 Manter limpo e em ordem o local de trabalho.
53
2.8 NR13 (CALDEIRAS E VASOS DE PRESSÃO)
2.8.1 Generalidades
Por trabalhar com altas pressões de vapor, as caldeiras estão enquadradas na
NR13, onde esta define parâmetros legais e técnicos para garantir a segurança das
mesmas.
2.8.2 Profissional habilitado
Para efeito desta NR, considera-se "Profissional Habilitado" aquele que tem
competência legal para o exercício daprofissão de engenheiro nas atividades
referentes a projeto de construção, acompanhamento operação e manutenção,
inspeção e supervisão de inspeção de caldeiras e vasos de pressão, em
conformidade com a regulamentação profissional vigente no País.
2.8.3 Pontos relevantes da NR 13
- Pressão Máxima de Trabalho Permitida - PMTP ou Pressão Máxima de Trabalho
Admissível – PMTA: é o maior valor de pressão compatível com o código de projeto,
a resistência dos materiais utilizados, as dimensões do equipamento e seus
parâmetros operacionais.
 ITENS DE SEGURANÇA MAIS IMPORTANTES:
a) válvula de segurança com pressão de abertura ajustada em valor igual ou inferior
a PMTA;
b) instrumento que indique a pressão do vapor acumulado;
c) injetor ou outro meio de alimentação de água, independente do sistema principal,
em caldeiras combustível sólido;
d) sistema de drenagem rápida de água, em caldeiras de recuperação de álcalis;
e) sistema de indicação para controle do nível de água ou outro sistema que evite o
superaquecimento por alimentação deficiente.
54
2.8.4 Identificação indelével
a) fabricante;
b) número de ordem dado pelo fabricante da caldeira;
c) ano de fabricação;
d) pressão máxima de trabalho admissível;
e) pressão de teste hidrostático;
f) capacidade de produção de vapor;
g) área de superfície de aquecimento;
h) código de projeto e ano de edição
2.8.5 Prontuário da caldeira
- código de projeto e ano de edição;
- especificação dos materiais;
- procedimentos utilizados na fabricação, montagem, inspeção final e determinação
da PMTA;
- conjunto de desenhos e demais dados necessários para o monitoramento da vida
útil da caldeira;
- características funcionais;
- dados dos dispositivos de segurança;
- ano de fabricação;
- categoria da caldeira;
2.8.6 Outros pontos relevantes
 Registros de segurança;
 Projeto de Instalação, alterações ou reparos;
 Relatórios de Inspeção;
 Em caso de venda da caldeira, a documentação deve acompanha-la;
 Enquadramento como vaso de pressão;
55
 Procedimentos de partida e parada, operação e cuidados com o meio
ambiente;
 Treinamento de Segurança para operações de Unidades de Precesso;
NOTA: Para mais informações, consultar NR13.
2.9 CICLO RANKINE
O Ciclo Rankine é um ciclo termodinâmico reversível que converte calor em trabalho.
O calor é suprido via externa para um laço fechado, onde é usual usar água. Ele é
nomeado após a descoberta de William John Macquorn Rankine, um escocês
polimata e professor da Universidade de Glasgow. O ciclo termodinâmico Rankine é
fundamental subjacente dos motores a vapor.
O ciclo Rankine mostra a descrição fechada do processo da operação de vapor das
máquinas térmicas mostra geralmente descobrindo nas usinas de generação elétrica
a combustão de combústiveis fossíl como o carvão, gás natural, e gasolina.
Fonte: WIKIPÉDIA. (Site)
56
2.9.1 Motores a vapor
2.9.1.1 Generalidades
Após a geração do vapor na Caldeira, este será conduzido para realizar trabalho,
sendo este desde aquecimento, lavar e esterilizar objetos, ou mover algum tipo de
motor para que este, por sua vez, converta calor e pressão em energia mecânica
(movimento), podendo movimentar máquinas ou geradores elétricos.
Os motores a vapor mais utilizados são: Turbinas Vapor e Motor tipo Pistão.
2.9.1.2 Turbinas a vapor
Turbina a Vapor é a Máquina Térmica que utiliza a energia do vapor sob forma de
energia cinética. Deve transformar em energia mecânica a energia contida no vapor
vivo sob a forma de energia térmica e de pressão.
O elemento básico da turbina é a roda ou rotor, que conta com paletas, hélices,
lâminas ou cubos colocados ao redor de sua circunferência, de forma que o fluido
em movimento produza uma força tangencial que impulsiona a roda, fazendo-a girar.
A turbina a vapor é atualmente o mais usado entre os diversos tipos de acionadores
primários existentes. Uma série de favorável de características concorreu para que a
turbina a vapor se destacasse na competição com outros acionadores.
Fonte: WIKIPÉDIA. (Site)
57
2.9.1.3 Motores a vapor tipo pistão
Os motores a vapor tipo pistão foram o primeiro tipo de motor a ser amplamente
usado.
Eles foram inventados por Thomas Newcomen, em 1705, e James Watt (que
lembramos a cada vez que falamos sobre lâmpadas de 60 watts) fez grandes
melhorias nas máquinas a vapor, em 1769.
Os motores a vapor movimentaram as primeiras locomotivas, barcos a vapor e
fábricas e, dessa forma, foram a base da Revolução Industrial.
O diagrama a seguir mostra os componentes principais de um motor a vapor com
pistão. Este tipo de motor seria característico numa locomotiva a vapor.
Fonte: FORUM OUTER SPACE TERRA. (Site)
58
3 BOMBAS E INSTALAÇÕES HIDRÁULICAS
Fonte: SCHNEIDER MOTOBOMBAS, 2006.
3.1 CONSIDERAÇÕES GERAIS SOBRE BOMBAS HIDRÁULICAS
3.1.1 Definição
Bombas Hidráulicas são Máquinas Hidráulicas Operatrizes, isto é, máquinas que
recebem energia potencial (força motriz de um motor ou turbina), e transformam
parte desta potência em energia cinética (movimento) e energia de pressão (força),
cedendo estas duas energias ao fluído bombeado, de forma a recirculá-lo ou
transportá-lo de um ponto a outro.
3.1.2 Classificação
Devido a grande diversidade das bombas existentes, adotaremos uma classificação
resumida, dividindo-as em dois grandes grupos:
59
 Bombas Centrífugas:
Também conhecidas como Turbo-Bombas, Hidro ou Roto-dinâmicas, ou ainda
bombas de transferência.
Nas bombas centrífugas, a movimentação do fluído ocorre pela ação de forças que
se desenvolvem na massa do mesmo, em consequência da rotação de um eixo no
qual é acoplado um disco (rotor, impulsor) dotado de pás (palhetas, hélice), o qual
recebe o fluído pelo seu centro e o expulsa pela periferia, pela ação da força
centrífuga, daí o seu nome mais usual.
A Bomba Centrífuga tem como base de funcionamento a criação de duas zonas de
pressão diferenciadas, uma de baixa pressão (sucção) e outra de alta pressão
(recalque).
Para que ocorra a formação destas duas zonas distintas de pressão, é necessário
existir no interior da bomba a transformação da energia mecânica (de potência), que
é fornecida pela máquina motriz (motor ou turbina), primeiramente em energia
cinética, a qual irá deslocar o fluído, e posteriormente, em maior escala, em energia
de pressão, a qual irá adicionar “carga” ao fluído para que ele vença as alturas de
deslocamento.
60
Abaixo, figuras ilustrativas de tipos de bombas centrífugas:
Fonte: SCHNEIDER MOTOBOMBAS, 2006.
Para expressar este funcionamento, existem três partes fundamentais na bomba:
o Corpo (carcaça): que envolve o rotor, acondiciona o fluído, e direciona
o mesmo para a tubulação de recalque;
o Rotor (impelidor): constitui-se de um disco provido de pás (palhetas)
que impulsionam o fluído;
o Eixo de acionamento, que transmite a força motriz ao qual está
acoplado o rotor, causando o movimento rotativo do mesmo.
Antes do funcionamento, é necessário que a carcaça da bomba e a tubulação de
sucção, estejam totalmente preenchidas com o fluído a ser bombeado.
61
 Bombas Volumétricas:
Nas Bombas Volumétricas, ou de Deslocamento Positivo, a movimentação do fluído
é causada diretamente pela ação do órgão de impulsão da bomba que obriga o
fluído a executar o mesmo movimento a que está sujeito este impulsor (êmbolo,
engrenagens, lóbulos, palhetas).
Dá-se o nome de volumétrica porque o fluído, de forma sucessiva, ocupa e
desocupa espaços no interior da bomba, com volumes conhecidos, sendo que o
movimento geral deste fluído dá-se na mesma direção das forças a ele transmitidas,
por isso a chamamos de deslocamento positivo. As Bombas Volumétricas dividem-
se em:
 Êmbolo ou Alternativas (pistão, diafragma, membrana):
Fonte: SCHNEIDER MOTOBOMBAS, 2006.
62
 Engrenagens:
Fonte: SCHNEIDER MOTOBOMBAS, 2006.
 Paletas:
Fonte: SCHNEIDER MOTOBOMBAS, 2006.
63
 Parafuso:
Fonte: SCHNEIDER MOTOBOMBAS, 2006.
 APLICAÇÃO DE UM SISTEMA HIDRÁULICO COM BOMBA CENTRÍFUGA:
Fonte: Manual Técnico SCHNEIDER MOTOBOMBAS
64
 APLICAÇÃO DE UM SISTEMA HIDRÁULICO COM BOMBA
VOLUMÉTRICA:
Fonte: INDÚSTRIA HOJE. (Site)
NOTA:
NESTA APOSTILA ABORDAREMOS APENAS CÁLCULOS ENVOLVENDO
INSTALAÇÕES HIDRÁULICAS COM UTILIZAÇÃO DE BOMBAS CENTRÍFUGAS.
3.2 TERMOS HIDRÁULICOS MAIS USADOS EM BOMBEAMENTO
3.2.1 Altura de sucção (AS)
Desnível geométrico (altura em metros), entre o nível dinâmico da captação e o
bocal de sucção da bomba.
OBS.: Em bombas centrífugas normais, instaladas ao nível do mar e com fluído
bombeado a temperatura ambiente, esta altura não pode exceder 8 metros de
coluna d’água (8 mca).
65
3.2.2 Altura de recalque (AR)
Desnível geométrico (altura em metros), entre o bocal de sucção da bomba e o
ponto de maior elevação do fluído até o destino final da instalação (reservatório,
etc.).
2.2.3 Altura manométrica total (AMT)
Altura total exigida pelo sistema, a qual a bomba deverá ceder energia suficiente ao
fluído para vencê-la. Leva-se em consideração os desníveis geométricos de sucção
e recalque e as perdas de carga por atrito em conexões e tubulações.
AMT = Altura Sucção + Altura Recalque + Perdas de Carga Totais (*)
(*) Perdas em Tubulações/Conexões e Acessórios
Unidades mais comuns: mca, Kgf/cm² , Lb/Pol², Onde: 1 Kgf/cm² = 10 mca = 14,22
Lb/Pol²
3.2.4 Perda de carga nas tubulações
Atrito exercido na parede interna do tubo quando da passagem do fluído pelo seu
interior. É mensurada obtendo-se, através de coeficientes, um valor percentual sobre
o comprimento total da tubulação, em função do diâmetro interno da tubulação e da
vazão desejada.
3.2.5 Perda de carga localizada nas conexões
Atrito exercido na parede interna das conexões, registros, válvulas, dentre outros,
quando da passagem do fluído. É mensurada obtendo-se, através de coeficientes,
um comprimento equivalente em metros de tubulação, definido em função do
diâmetro nominal e do material da conexão.
66
3.2.6 Comprimento da tubulação de sucção
Extensão linear em metros de tubo utilizados na instalação, desde o injetor ou
válvula de pé até o bocal de entrada da bomba.
3.2.7 Comprimento da tubulação de recalque
Extensão linear em metros de tubo utilizados na instalação, desde a saída da bomba
até o ponto final da instalação.
3.2.8 Golpe de aríete
Impacto sobre todo o sistema hidráulico causado pelo retorno da água existente na
tubulação de recalque, quando da parada da bomba. Este impacto, quando não
amortecido por válvula(s) de retenção, danifica tubos, conexões e os componentes
da bomba.
3.2.9 Nível estático
Distância vertical em metros, entre a borda do reservatório de sucção e o nível
(lâmina) da água, antes do início do bombeamento.
3.2.10 Nível dinâmico
Distância vertical em metros, entre a borda do reservatório de sucção e o nível
(lâmina) mínimo da água, durante o bombeamento da vazão desejada.
3.2.11 Submergência
Distância vertical em metros, entre o nível dinâmico e o injetor (Bombas Injetoras), a
válvula de pé (Bombas Centrifugas Normais), ou filtro da sucção (Bombas
Submersas).
67
3.2.12 Escorva da bomba
Eliminação do ar existente no interior da bomba e da tubulação de sucção. Esta
operação consiste em preencher com o fluído a ser bombeado todo o interior da
bomba e da tubulação de sucção, antes do acionamento da mesma. Nas bombas
autoaspirantes basta eliminar o ar do interior da mesma pois, até 8 mca de sucção, a
bomba eliminará o ar da tubulação automaticamente.
3.2.13 Autoaspirante
O mesmo que Autoescorvante, isto é, bomba centrífuga que elimina o ar da
tubulação de sucção, não sendo necessário o uso de válvula de pé na sucção da
mesma, desde que, a altura de sucção não exceda 8 mca.
3.2.14 Cavitação
Fenômeno físico que ocorre em bombas centrífugas no momento em que o fluído
succionado pela mesma tem sua pressão reduzida, atingindo valores iguais ou
inferiores a sua pressão de vapor (líquido => vapor). Com isso, formam-se bolhas
que são conduzidas pelo deslocamento do fluído até o rotor onde implodem ao
atingirem novamente pressões elevadas (vapor => líquido).
Este fenômeno ocorre no interior da bomba quando o NPSHd (sistema), é menor
que o NPSHr (bomba). A cavitação causa ruídos, danos e queda no desempenho
hidráulico das bombas.
3.2.15 NPSH
Sigla da expressão inglesa - Net Positive Suction Head a qual divide-se em:
o NPSH disponível - Pressão absoluta por unidade de peso existente na
sucção da bomba (entrada do rotor), a qual deve ser superior a pressão de
68
vapor do fluído bombeado, e cujo valor depende das características do
sistema e do fluído;
o NPSH requerido - Pressão absoluta mínima por unidade de peso, a qual
deverá ser superior a pressão de vapor do fluído bombeado na sucção da
bomba (entrada de rotor) para que não haja cavitação. Este valor depende
das características da bomba e deve ser fornecido pelo fabricante da mesma;
O NPSHdisp deve ser sempre maior que o NPSHreq (NPSHd > NPSHr + 0,6)
3.2.16 Válvula de pé ou de fundo de poço
Válvula de retenção colocada na extremidade inferior da tubulação de sucção para
impedir que a água succionada retorne à fonte quando da parada do funcionamento
da bomba, evitando que esta trabalhe a seco (perda da escorva).
3.2.17 Crivo
Grade ou filtro de sucção, normalmente acoplado a válvula de pé, que impede a
entrada de partículas de diâmetro superior ao seu espaçamento.
3.2.18 Válvula de retenção
Válvula de sentido único colocada na tubulação de recalque para evitar o golpe de
aríete. Utilizar uma válvula de retenção a cada 20 mca de AMT.
3.2.19 Pressão a atmosférica
Peso da massa de ar que envolve a superfície da terra até uma altura de ± 80 Km e
que age sobre todos os corpos. Ao nível do mar, a pressão atmosférica é de 10,33
mca ou 1,033 Kgf/cm² (760 mm/Hg).
69
3.2.20 Registro
Dispositivo para controle da vazão de um sistema hidráulico.
3.2.21 Manômetro
Instrumento que mede a pressão relativa positiva do sistema.
3.2.22 Vazão
Quantidade de fluído que a bomba deverá fornecer ao sistema, por unidade de
tempo.
Unidades mais comuns: m3
/h, l/h, l/min, l/s
Onde: 1 m3
/h = 1000 l/h = 16.67 l/min = 0.278 l/s
3.2.23 Hidráulica
Hidráulica é uma palavra que vem do grego e é a união de hydra = água, e aulos =
condução/aula/tubo é, portanto, uma parte da física que se dedica a estudar o
comportamento dos líquidos em movimento e em repouso. É responsável pelo
conhecimento das leis que regem o transporte, a conversão de energia, a regulagem
e o controle do fluido agindo sobre suas variáveis (pressão, vazão, temperatura,
viscosidade, etc).
3.2.24 MCA (mca)
Metro de coluna d'água.
As equivalências entre mca e outras unidades são:
10 m.c.a = 1 Kgf/cm² = 100 Kpa
3.2.25 Bomba de afogada
Nível da bomba abaixo do nível do reservatório:
70
Neste caso não haverá válvula de pé (para bomba centrífuga) para cálculo da perda
de carga na sucção nem haverá altura da sucção (ou poderá ser positiva) para o
cálculo da altura manométrica e para o cálculo do NPSHd (verificação da cavitação).
3.3 PROJETO HIDRÁULICO – DEFINIÇÕES
3.3.1 Potência absorvida (BHP) e rendimento (η) das bombas
DEFINIÇÃO: A Potência Absorvida (BHP) de uma bomba é a energia que ela
consome para transportar o fluído na vazão desejada, altura estabelecida, com o
rendimento esperado.
No entanto, o BHP (Brake Horse Power), denominado “Consumo de Energia da
Bomba”, é função de duas outras potências também envolvidas no funcionamento
de uma bomba. São elas:
A. Potência hidráulica ou de elevação (WHP);
B. Potência útil (PU).
Porém, na prática, apenas a potência motriz faz-se necessária para se chegar ao
motor de acionamento da bomba, cuja expressão matemática é expressa por:
BHP ou PM = Q x H x 0,37
η
Onde:
BHP ou PM = Potência motriz absorvida pela bomba (requerida para a realização do
trabalho desejado);
Q = Vazão desejada, em m3
/h;
H = Altura de elevação pretendida, em mca;
0,37 = Constante para adequação das unidades;
71
η = Rendimento esperado da bomba, ou fornecido através da curva característica da
mesma, em percentual (%).
3.3.2 Rendimento (η)
O rendimento de uma bomba é a relação entre a energia oferecida pela máquina
motriz (motor) e a absorvida pela máquina operatriz (bomba). Isto é evidenciado uma
vez que o motor não transmite para o eixo toda a potência que gera, assim como a
bomba, que necessita uma energia maior do que consome, devido as suas perdas
passivas na parte interna.
O rendimento global de uma bomba divide-se em:
A. Rendimento Hidráulico (H): Leva em consideração o acabamento interno
superficial do rotor e da carcaça da bomba. Varia também de acordo com o tamanho
da bomba, de 20% a 90%;
B. Rendimento Volumétrico (V): Leva em consideração os vazamentos externos
pelas vedações (gaxetas) e a recirculação interna da bomba. Bombas
autoaspirantes, injetoras e de alta pressão possuem rendimento volumétrico e global
inferior às convencionais;
C. Rendimento Mecânico(M): Leva em consideração que apenas uma parte da
potência necessária ao acionamento de uma bomba é usada para bombear. O
restante, perde-se por atrito;
Portanto, o rendimento global será:
η = Q x H x 0,37
BHP
Ou seja: a relação entre a potência hidráulica e a potência absorvida pela bomba.
72
3.3.3 Exemplo
Uma bomba operando com 42 m³/h em 100 mca, que apresenta na curva
característica um rendimento de 57%. Qual a potência necessária para acioná-la?
Qual o rendimento da bomba?
3.3.3.1 Cálculo da potência
PM = Q x H x 0,37 PM = 42 x 100 x 0,37 PM = 27,26 ≅ 30
CV (*)
η 57
(*) Comercialmente, para uma potência requerida de 27,26 CV, teríamos que acoplar
à bomba um motor de 30 CV.
3.3.3.2 Cálculo do rendimento
η = 42 x 100 x O,37 => η = 51,8%
27,26
3.3.4 Perdas de carga (hf), nº de reynolds (Re), velocidade de escoamento (V),
diâmetros dos tubos, e altura manométrica total (AMT)
DEFINIÇÃO DE CARGA (hf): Denomina-se perda de carga de um sistema, o atrito
causado pela resistência da parede interna do tubo quando da passagem do fluído
pela mesma. As perdas de carga classificam-se em:
 CONTÍNUAS: Causadas pelo movimento da água ao longo da tubulação. É
uniforme em qualquer trecho da tubulação (desde que de mesmo diâmetro),
independente da posição do mesmo. (Tabela 5);
 LOCALIZADAS: Causadas pelo movimento da água nas paredes internas e
emendas das conexões e acessórios da instalação, sendo maiores quando
73
localizadas nos pontos de mudança de direção do fluxo. Estas perdas não
são uniformes, mesmo que as conexões e acessórios possuam o mesmo
diâmetro. (Tabela 6).
3.4 FATORES QUE INFLUENCIAM NAS PERDAS DE CARGA
A. Natureza do fluído escoado (peso específico, viscosidade): Para bombas
fabricadas basicamente para o bombeamento de água, cujo peso específico é de
1.000 Kgf/m3, não há necessidade de agregar-se fatores ao cálculo de perdas de
carga, em se tratando desta aplicação;
B. Material empregado na fabricação dos tubos e conexões (PVC, ferro) e tempo de
uso: Comercialmente, os tubos e conexões mais utilizados são os de PVC e Ferro
Galvanizado, cujas diferenças de fabricação e acabamento interno (rugosidade e
área livre) são bem caracterizadas, razão pela qual apresentam coeficientes de
perdas diferentes, conforme as Tabelas 5 e 6;
C. Diâmetro da tubulação: O diâmetro interno ou área livre de escoamento, é
fundamental na escolha da canalização já que, quanto maior a vazão a ser
bombeada, maior deverá ser o Ø interno da tubulação, afim de diminuir-se as
velocidades e, consequentemente, as perdas de carga. São muitas as fórmulas
utilizadas para definir-se qual o diâmetro mais indicado para a vazão desejada. Para
facilitar os cálculos, todas as perdas já foram tabeladas pelos Fabricantes de
diferentes tipos de tubos e conexões. No entanto, para efeito de cálculos, a fórmula
mais utilizada para chegar-se aos diâmetros de tubos é a Fórmula de Bresse,
expressa por:
Onde:
D = Diâmetro interno do tubo, em metros;
74
K= 0,9 - Coeficiente de custo de investimento x custo operacional. Usualmente
aplica-se um valor entre 0,8 e 1,0;
Q = Vazão, em m³/ s;
A Fórmula de Bresse calcula o diâmetro da tubulação de recalque, sendo que, na
prática, para a tubulação de sucção adota-se um diâmetro comercial imediatamente
superior. As Tabelas 4 e 5 indicam os diâmetros dos tubos conforme a sua
aplicação.
D. Comprimento dos tubos e quantidade de conexões e acessórios: Quanto maior o
comprimento e o nº de conexões, maior será a perda de carga proporcional do
sistema.
Portanto, o uso em excesso de conexões e acessórios causará maiores perdas,
principalmente em tubulações não muito extensas;
E. Regime de escoamento (laminar ou turbulento): O regime de escoamento do
fluído é a forma como ele desloca-se no interior da tubulação do sistema, a qual
determinará a sua velocidade, em função do atrito gerado. No regime de
escoamento laminar, os filetes líquidos (moléculas do fluído agrupadas umas às
outras) são paralelos entre si, sendo que suas velocidades são invariáveis em
direção e grandeza, em todos os pontos. O regime laminar é caracterizado quando o
nº de Reynolds (Re), for inferior a 2.000.
No regime de escoamento turbulento, os filetes movem-se em todas as direções, de
forma sinuosa, com velocidades variáveis em direção e grandeza, em pontos e
instantes diferentes (figura 8). O regime turbulento é caracterizado quando o nº de
Reynolds (Re), for superior a 4.000.
75
Obviamente, o regime de escoamento mais apropriado para um sistema de
bombeamento é o laminar pois, acarretará menores perdas de carga por atrito em
função do baixo número de interferências existentes na linha.
Fonte: SHNEIDER, 2008
3.5 Nº DE REYNOLDS (Re)
É expresso por:
Onde:
Re = Nº de Reynolds;
V = Velocidade média de escoamento, em m/s;
D = Diâmetro da Tubulação, em metros;
Ʋ = Viscosidade cinemática do Líquido, em m2
/s;
Para a água doce, ao nível do mar e a temperatura de 25ºC, a viscosidade
cinemática (Ʋ) é igual a 0,000001007 m²/s;
O escoamento será:
Laminar: Re < 2.000
Turbulento : Re > 4.000
Entre 2.000 e 4.000, o regime de escoamento é considerado crítico.
76
NOTA: Na prática, o regime de escoamento da água em tubulações é sempre
turbulento. Desta forma, em nossos estudos sempre consideraremos Re
TURBULENTO.
3.6 VELOCIDADE DE ESCOAMENTO (V)
Derivada da equação da continuidade, a velocidade média de escoamento aplicada
em condutos circulares é dado por:
Onde:
V = Velocidade de escoamento, em m/s;
Q = Vazão, em m³/s;
π (Pi) = 3,1416 (constante);
D = Diâmetro interno do tubo, em metros;
Para uso prático, as velocidades de escoamento mais econômicas são:
Velocidade de Sucção ≤ 1,5 m/s (limite 2,0 m/s)
Velocidade de Recalque ≤ 2,5 m/s (limite 3,0 m/s)
3.7 DIÂMETRO DOS TUBOS
A. Tubulação de Recalque: Pelas Tabelas 4 e 5, podemos escolher o diâmetro mais
adequado para os tubos de recalque, observando a linha grifada, em função da
melhor relação custo benefício possível. (custo de investimento x custo operacional);
Custo de Investimento: Custo total dos tubos, bomba, conexões, acessórios, etc.
Quanto menor o diâmetro dos tubos, menor o investimento inicial, e vice-versa;
77
Custo Operacional: Custo de manutenção do sistema. Quanto maior o diâmetro dos
tubos, menor será a altura manométrica total (AMT), a potência do motor, o tamanho
da bomba e o gasto de energia. Consequentemente, menor será o custo
operacional, e vice-versa;
B. Tubulação de Sucção: Na prática, define-se esta tubulação usando-se o diâmetro
comercial imediatamente superior ao definido anteriormente para recalque,
analisando-se, sempre, o NPSHd do sistema.
3.8 ALTURA MANOMÉTRICA TOTAL (AMT)
A determinação desta variável é de fundamental importância para a seleção da
bomba hidráulica adequada ao sistema em questão. Pode ser definida como a
quantidade de trabalho necessário para movimentar um fluído, desde uma
determinada posição inicial, até a posição final, incluindo nesta “carga” o trabalho
necessário para vencer o atrito existente nas tubulações por onde desloca-se o
fluído. Matematicamente, é a soma da altura geométrica (diferença de cotas) entre
os níveis de sucção e descarga do fluído, com as perdas de carga distribuídas e
localizadas ao longo de todo o sistema (altura estática + altura dinâmica).
Portanto:
Hman = Hgeo + hf
A expressão utilizada para cálculo é:
AMT = AS + AR + Perdas de Cargas Totais (hfr + hfs)
NOTA: Para aplicações em sistemas onde existam na linha hidráulica, equipamentos
e acessórios (irrigação, refrigeração, máquinas, etc.) que requeiram pressão
adicional para funcionamento, deve-se acrescentar ao cálculo da AMT a pressão
requerida para o funcionamento destes equipamentos.
78
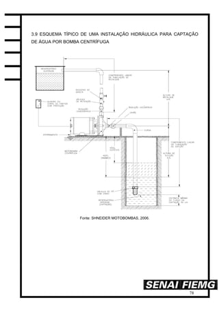
3.9 ESQUEMA TÍPICO DE UMA INSTALAÇÃO HIDRÁULICA PARA CAPTAÇÃO
DE ÁGUA POR BOMBA CENTRÍFUGA
Fonte: SHNEIDER MOTOBOMBAS, 2006.
79
3.10 PROCEDIMENTOS BÁSICO PARA ESCOLHA DE UMA BOMBA
CENTRÍFUGA (PARA ALTURA DE SUCÇÃO INFERIOR A 8 mca)
3.10.1 Critérios
Para calcular-se com segurança a bomba centrífuga adequada a um determinado
sistema de abastecimento de água, são necessários alguns dados técnicos
fundamentais do local da instalação e das necessidades do projeto:
A. Altura de Sucção => AS, em metros;
B. Altura de Recalque => AR, em metros;
C. Distância em metros entre a captação, ou reservatório inferior, e o ponto de uso
final, ou reservatório superior, isto é, caminho a ser seguido pela tubulação, ou, se já
estiver instalada, o seu comprimento em metros lineares, e os tipos e quantidades
de conexões e acessórios existentes;
D. Diâmetro (Pol ou mm) e material (PVC ou metal), das tubulações de sucção e
recalque, caso já forem existentes;
E. Tipo de fonte de captação e vazão disponível na mesma, em m³/h;
F. Vazão requerida, em m³/h;
G. Capacidade máxima de energia disponível para o motor, em CV, e tipo de ligação
(monofásico ou trifásico ) quando tratar-se de motores elétricos;
H. Altitude do local em relação ao mar;
I. Temperatura máxima e tipo de água (rio, poço, chuva).
80
2.10.2 Exemplo
Baseados nestas informações podemos calcular a bomba necessária para a
seguinte situação:
Fonte: SHNEIDER MOTOBOMBAS, 2006.
3.10.3 Cálculo
a) Escolha do diâmetro de tubulação:
A escolha do diâmetro da tubulação de recalque pode ser feita pela Fórmula de
Bresse (adicionando um percentual de perda de carga por metro de tubo), pela
Tabela 5 (Completa) ou pela Tabela 4 (Resumida).
Para a tubulação de sucção, adota-se um diâmetro comercial imediatamente
superior ao recalque.
Assim, temos Diâmetro Recalque: 1 ¼” (40 mm) Diâmetro Sucção: 1 ½” (50 mm)
b) VELOCIDADE DE ESCOAMENTO (V): Derivada da equação da
continuidade, a velocidade média de escoamento aplicada em condutos
circulares é dado por:
81
Lembrete: Vazão em m3
/ s e Diâmetro em m (metros).
Aplicando a fórmula, temos:
Para uso prático, as velocidades de escoamento mais econômicas são:
Velocidade de Sucção ≤ 1,5 m/s (limite 2,0 m/s)
Velocidade de Recalque ≤ 2,5 m/s (limite 3,0 m/s)
c) Cálculo da perda de carga (PC)
 Para o recalque:
Pela tabela 6 vemos os comprimentos equivalentes para as conexões em PVC:
PCr = (Comprimento linear da tubulação + Comprimento equivalente) x Fator de
perda de carga:
Tabela 5 – Perda de carga em tubulações de PVC: Fazendo regra de 3 simples para
180 metros de tubo, teremos 7 % de perda de carga.
PCr = ( 180 +10,05 ) x 7% => PCr = 13,30 mca
82
 Para a sucção:
Tabela 6 - Comprimentos equivalentes para as conexões em PVC:
PCs = ( 5 + 19,90 ) x 2,5% => PCs = 0,62 mca
NOTA: Para BOMBA AFOGADA – Nível da bomba abaixo do nível do reservatório,
não será necessária a válvula de pé com crivo.
d) Cálculo da altura manométrica total (AMT):
AMT = As + Ar + PCs + PCr
AMT = 0,5 + 25 + 0,62 + 13,30
AMT = 39,42 mca
NOTA: Para BOMBA AFOGADA – Nível da bomba abaixo do nível do reservatório,
não haverá a altura de sucção.
e) Determinação da Motobomba:
AMT = 40 mca
Vazão = 4 m³/h
f) Determinação do NPSHd:
83
Ho = 9,58 mca (tabela 1, considerando altitude de 600 metros acima do nível do
mar)
As = 0,50 m (dado) => Para bomba afogada, este valor será positivo.
Hv = 0,753 mca (tabela 2 para temperatura até 40 ºC)
PCs = 0,62 mca (calculado)
NPSHd = 9,58 – 0,753 – 0,50 – 0,62 => NPSHd = 7,71 mca (*)
(*) NOTA: Este valor deverá ser comparado aos ábacos da Tabela 7 ou Tabela 8
(somando-se 0,6.
O valor de NPSHd deverá ser maior do que NPSHr + 0,6 do ábaco. Caso contrário,
haverá cavitação.
Pela consulta ao ábaco da tabela 7, encontramos um valor aproximado de 2,5 + 0,6
= 3,1 mca. Neste caso não ocorrerá cavitação.
NOTAS:
1) Para BOMBA AFOGADA – Nível da bomba abaixo do nível do reservatório,
não haverá a altura de sucção ou será positiva, aumentando a garantia de
não haver a cavitação.
2) O teorema de Bernoulli utiliza a fórmula abaixo para a determinação do
NPSHd:
Onde:
84
PR = Pressão do Reservatório [mca] => Quando se tratar de reservatório
pressurizado
HO = Pressão Atmosférica em relação a altitude do local [mca]
PV = Pressão de Vapor em função da temperatura [mca] => Ver tabela 2
As = Desnível entre a bomba e a válvula de pé (sucção) [m]
VS = Velocidade do fluido na sucção [m/s]
G = Aceleração da Gravidade no local [m/s2
]
PCs = Perda de Carga na Sucção [mca]
g) Cálculo da Potência do Motor de Acionamento da Bomba:
(*) Rendimento da bomba fornecido pelo fabricante conforme condições de trabalho.
Para efeito didático, consideraremos 60 % de rendimento para este cálculo.
(**) Comercialmente, para uma potência requerida de 0,9867 cv, teríamos que
acoplar à bomba um motor de 1 cv.
3.11 QUADRO PRÁTICO PARA CÁLCULO DO SISTEMA HIDRÁULICO COM
BOMBA CENTRÍFUGA
Para fins didáticos, utilizaremos o quadro resumo abaixo para facilitar o cálculo:
85
3.12 QUADRO PRÁTICO PARA CÁLCULO
a) DIÂMETRO DA TUBULAÇÃO:
RECALQUE => Tabela 4 (Conforme Vazão): _________ (mm) ou _______ ”
SUCÇÃO => Tabela 4 (Imediatamente Superior): _________ (mm) ou _______ ”
b) VELOCIDADE DE ESCOAMENTO (V):
c) PERDA DE CARGA (PC):
PCr = (Comprimento linear da tubulação + Comprimento equivalente) x Fator de
perda de carga:
PCr = ( _______ + _______ ) x ___ % => PCr = _______ mca
86
PCs = ( _______ + _______ ) x ___ % => PCs = _______ mca
d) ALTURA MANOMÉTRICA TOTAL (AMT):
AMT = As + Ar + PCs + PCr
AMT = _____ + _____ + _____ + _____ => AMT = ______ mca
e) ESPECIFICAÇÃO DA MOTOBOMBA:
AMT = ______ mca (Arredondar para cima AMT)
Vazão = ______ m³/h
f) DETERMINAÇÃO DO NPSHd (Verificação de Cavitação):
NPSHd = Ho (Tabela 1) – Hv (Tabela 2) – As (Dado) – PCs (Calculado)
NPSHd = _____ – _____ – _____ – _____ => NPSHd = _____ mca (*)
Ver na Tabela 7 ou Tabela 8: => Se NPSHd maior que (NPSHr + 0,6) do ábaco.
Caso contrário, haverá cavitação.
NPSHd (maior) (menor) que (NPSHr + 0,6) => Cavitação? ( S ) ( N )
g) Cálculo da Potência do Motor de Acionamento da Bomba:
87
REFERÊNCIAS
ARAÚJO, Gilberto Ferreira de. Refrigeração: Termodinâmica. 2 ed. SENAI –
FIEMG. Belo Horizonte: 2001. 82 p
BABCOCK CALDEIRAS LTDA. (Site). Disponível em: <http://www.babcock-
wanson.pt/produtos_queimadores_princ.aspx>. Acesso em: 01 abr. 2014.
BERNUY, Alfonso Chíncaro. Módulos didáticos de física: eixo II: transferência,
transformação e conservação da energia: tema 3 energia térmica. Disponível em:
<http://crv.educacao.mg.gov.br/sistema_crv/documentos/md/em/fisica/2010-08/md-
em-fs-06.pdf>. Acesso em: 01 abr. 2014.
BLOG DO PROFESSOR CARLÃO. (Blog). Disponível em:
<http://blogdoprofessorcarlao.blogspot.com.br/2008/05/mquinas-trmicas-e-refrigerao-
aula-4.html>. Acesso em: 01 abr. 2014.
BOMBAS: Guia Básico. Procel Indústria: Edição Seriada, 2009. 239 p.
BRASIL ESCOLA. (Site). Disponível em: <
http://www.brasilescola.com/fisica/aquecimento-agua-por-energia-solar.htm>.
Acesso em: 01 abr. 2014.
COLÉGIO WEB. (site) Disponível em:
<http://www.colegioweb.com.br/trabalhos-escolares/4-ano/os-estados-fisicos-da-
agua.html >. Acesso em: 01 abr. 2014.
CEPA .USP. (Site). Disponível em:
<http://www.cepa.if.usp.br/energia/energia1999/Grupo2B/Refrigeracao/geladeira.htm
>. Acesso em: 01 abr. 2014.
CREDER, Hélio. Instalações de ar condicionado. 6 ed. Reimpr. Rio de Janeiro:
LTC, 2004. 318p.
EBAH. (Site). Disponível em:
<http://www.ebah.com.br/content/ABAAABHK8AI/anexo-i-geradores-vapor>. Acesso
em: 01 abr. 2014.
88
IMC – Resistências Elétricas. (Site). Disponível em:
<http://www.imcltda.com.br/ebulidores.html>. Acesso em: 01 abr. 2014.
FORUM OUTER SPACE TERRA. (Site). Disponível em:
<http://forum.outerspace.terra.com.br/index.php?threads/engenharia-um-pouco-
sobre-motores.49216/ >. Acesso em: 01 abr. 2014.
FULTON. (Site). Disponível em: <http://www.fulton.com/ >. Acesso em: 01 abr.
2014.
INDÚSTRIA HOJE. (Site). Disponível em: < http://www.industriahoje.com.br/o-que-e-
e-como-funciona-uma-bomba-hidraulica >. Acesso em: 01 abr. 2014.
LIMA, Epaminondas Pio C. Mecânica das Bombas. 2. ed. Rio de Janeiro: Editora
Interciência, 2003. 610 p.
MACINTYRE, Archibald Joseph. Bombas e instalações de bombeamento. 2. ed.
Rio de Janeiro: LTC, c1997. 782 p.
MINHAS AULAS DE FÍSICAS (site). Disponível em:
<http://minhasaulasdefisica.blogspot.com.br/2012/03/potencia-termica.html>. Acesso
em: 01 abr. 2014.
MUNSON, Bruce Roy. Fundamentos da Mecânica dos Fluidos. 2.ed. Edgard
Blucher Ltda São Paulo 1997. 804 p.
NOGUEIRA, L. A. H. Turbinas a Vapor: Conceito, Operação e Manutenção. Itujubá,
MG. Apostila Fubai.
OPTEK. (Site). Disponível em:
<http://www.optek.com/Application_Note/geral/Portuguese/5/trocador_de_calor_-
_deteccao_de__fuga-vazamento_(oleo_em_agua).asp >. Acesso em: 01 abr. 2014.
89
RUNTAL. (Site) Disponível em: <http://www.runtal.com.br/pg_00179.php>. Acesso
em: Acesso em: 01 abr. 2014.
SANTOS, Sérgio Lopes dos. Bombas e Instalações Hidráulicas. São Paulo: LCTE
Editora, 2007. 253 p.
SCHNEIDER MOTOBOMBAS. Manual Técnico. Joinville: 2006. 44 p.
SENAI.MG. Refrigeração: termodinâmica. Belo Horizonte: Senai.MG. 2001.
SERMATEC. (Site). Disponível em: <http://www.sermatec.com.br/produtos/caldeiras-
aquatubulares/ >. Acesso em: 01 abr. 2014.
VAN WYLEN, Gordon John. Fundamentos da Termodinâmica Clássica. 4. ed.
Edgard Blucher Ltda São Paulo 1995. 589 p.
WIKIPEDIA. (Site). Disponível em: <http://pt.wikipedia.org/wiki/Ciclo_Rankine >.
Acesso em: 01 abr. 2014.
90
ANEXO
91
92
93

Apostila de Maquinas termicas e_de_fluxo

  • 1.
    1 MÁQUINAS TÉRMICAS E DE FLUXO Federaçãodas Indústrias do Estado de Minas Gerais - FIEMG Belo Horizonte 2014
  • 2.
    2 Presidente da FIEMG OlavoMachado Júnior Diretor Regional do SENAI Lúcio José de Figueiredo Sampaio Gerente de Educação Profissional Edmar Fernando de Alcântara
  • 3.
    3 Federação das Indústriasdo Estado de Minas Gerais - FIEMG MÁQUINAS TÉRMICAS E DE FLUXO Elaboração Aguilar de Oliveira Assis Belo Horizonte 2014
  • 4.
    4 © 2014. SENAI.Departamento Regional de Minas Gerais SENAI/MG Centro de Formação Profissional Américo Rene Giannetti Ficha Catalográfica SENAI.MG. Máquinas Térmicas e de Fluxo. Belo Horizonte: SENAI.MG, 2014. 93 p. MECÂNICA – MÁQUINAS TÉRMICAS E DE FLUXO CDU: 621 SENAI Serviço Nacional de Aprendizagem Industrial Departamento Regional de Minas Gerais FIEMG Av. do Contorno, 4456 Bairro Funcionários 30110-916 – Belo Horizonte Minas Gerais
  • 5.
    5 PPrreeffáácciioo “Muda a formade trabalhar, agir, sentir, pensar na chamada sociedade do conhecimento”. Peter Drucker O ingresso na sociedade da informação exige mudanças profundas em todos os perfis profissionais, especialmente naqueles diretamente envolvidos na produção, coleta, disseminação e uso da informação. O SENAI, maior rede privada de educação profissional do país, sabe disso, e ,consciente do seu papel formativo , educa o trabalhador sob a égide do conceito da competência:” formar o profissional com responsabilidade no processo produtivo, com iniciativa na resolução de problemas, com conhecimentos técnicos aprofundados, flexibilidade e criatividade, empreendedorismo e consciência da necessidade de educação continuada.” Vivemos numa sociedade da informação. O conhecimento, na sua área tecnológica, amplia-se e se multiplica a cada dia. Uma constante atualização se faz necessária. Para o SENAI, cuidar do seu acervo bibliográfico, da sua infovia, da conexão de suas escolas à rede mundial de informações – internet- é tão importante quanto zelar pela produção de material didático. Isto porque, nos embates diários, instrutores e alunos, nas diversas oficinas e laboratórios do SENAI, fazem com que as informações, contidas nos materiais didáticos, tomem sentido e se concretizem em múltiplos conhecimentos. O SENAI deseja, por meio dos diversos materiais didáticos, aguçar a sua curiosidade, responder às suas demandas de informações e construir links entre os diversos conhecimentos, tão importantes para sua formação continuada ! Gerência de Educação Profissional
  • 6.
    6 AAPPRREESSEENNTTAAÇÇÃÃOO Esta apostila doCurso TÉCNICO EM MECÂNICA do SENAI.MG da disciplina de Máquinas Térmicas e de Fluxo visa, além de transmitir os conhecimentos específicos sobre seu assunto, preparar o aluno para o ambiente de trabalho, despertando neste a visão prática dos assuntos correlacionados e trabalhando estudos de caso que visam aplicar os conhecimentos adquiridos nesta disciplina. Aguilar de Oliveira Assis
  • 7.
    7 SUMÁRIO 1 TERMODINÂMICA ..............................................................................................11 1.1CALOR E TEMPERATURA...............................................................................11 1.2 LEIS DA TERMODINÂMICA .............................................................................14 1.2.1 lei zero da termodinâmica ...........................................................................14 1.2.2 primeira lei da termodinâmica.....................................................................14 1.2.3 segunda lei da termodinâmica ....................................................................15 1.2.4 terceira lei da termodinâmica......................................................................15 1.3 TERMÔMETROS ..............................................................................................15 1.4 ESCALAS DE TEMPERATURA........................................................................16 1.5 TERMÔMETROS ..............................................................................................19 1.6 O COMPORTAMENTO INCOMUM DA ÁGUA .................................................20 1.7 CALORIMETRIA ...............................................................................................21 1.8 RELAÇÕES ENTRE AS UNIDADES DE CALOR .............................................22 1.9 CAPACIDADE TÉRMICA..................................................................................24 1.10 CALOR ESPECÍFICO .....................................................................................24 1.11 EQUAÇÃO FUNDAMENTAL DA CALORIMETRIA.........................................26 1.12 CALOR SENSÍVEL E CALOR LATENTE........................................................27 1.13 MUDANÇA DE ESTADO FÍSICO OU DE FASE ............................................27 1.14 CÁLCULO DA QUANTIDADE DE CALOR SENSÍVEL E LATENTE...............29 1.15 TABELA PRÁTICA PARA CÁLCULO DE MUDANÇA DE TEMPERATURA E FASE (SÓLIDO, LÍQUIDO E GASOSO) .................................................................33 1.16 POTÊNCIA TÉRMICA.....................................................................................34 1.17 POTÊNCIA TÉRMICA – Ar condicionado .......................................................35 1.18 TRANSMISSÃO DE CALOR...........................................................................36 2 CALDEIRA A VAPOR (Gerador de Vapor)........................................................42 2.1 DEFINIÇÃO......................................................................................................42 2.2 EXEMPLOS DE APLICAÇÃO DO VAPOR .......................................................43 2.3 EXEMPLOS UMA TURBINA A VAPOR UTILIZADA EM UMA USINA TERMELÉTRICA.....................................................................................................44 2.4 COMBUSTÍVEIS UTILIZADOS NAS CALDEIRAS............................................44 2.5 QUEIMADORES ...............................................................................................44
  • 8.
    8 2.5.1 Queimador deóleo combustível .................................................................45 2.5.2 Queimador de combustíveis ......................................................................45 2.5.3 Queimador de carvão..................................................................................46 2.5.4 Queima em grelha .......................................................................................46 2.6 CLASSIFICAÇÃO DAS CALDEIRAS ................................................................47 2.6.1 Caldeiras aguatubolares..............................................................................47 2.6.2 Caldeiras flamotubulares ............................................................................49 2.6.3 Caldeiras elétricas........................................................................................50 2.7 DISPOSITIVOS DE SEGURANÇA EM CALDEIRAS........................................51 2.7.1 Os principais dispositivos e cuidados com a segurança ........................51 2.7.2 Algumas medidas de segurança no funcionamento da caldeira .............52 2.8 NR13 (CALDEIRAS E VASOS DE PRESSÃO)................................................53 2.8.1 Generalidades ..............................................................................................53 2.8.2 Profissional habilitado.................................................................................53 2.8.3 Pontos relevantes da NR 13 ........................................................................53 2.8.4 Identificação indelével .................................................................................54 2.8.5 Prontuário da caldeira..................................................................................54 2.8.6 Outros pontos relevantes............................................................................54 2.9 CICLO RANKINE ..............................................................................................55 2.9.1 Motores a vapor ...........................................................................................55 2.9.1.1 Generalidades ...........................................................................................55 2.9.1.2 Turbinas a vapor .......................................................................................55 2.9.1.3 Motores a vapor tipo pistão .....................................................................57 3 BOMBAS E INSTALAÇÕES HIDRÁULICAS......................................................58 3.1 CONSIDERAÇÕES GERAIS SOBRE BOMBAS HIDRÁULICAS......................58 3.1.1 Definição .......................................................................................................58 3.1.2 Classificação ................................................................................................58 3.2 TERMOS HIDRÁULICOS MAIS USADOS EM BOMBEAMENTO ....................64 3.2.1 Altura de sucção (AS) ..................................................................................64 3.2.2 Altura de recalque (AR)................................................................................65 2.2.3 Altura manométrica total (AMT) ..................................................................65 3.2.4 Perda de carga nas tubulações...................................................................65
  • 9.
    9 3.2.5 Perda decarga localizada nas conexões ..................................................65 3.2.6 Comprimento da tubulação de sucção ......................................................66 3.2.7 Comprimento da tubulação de recalque ...................................................66 3.2.8 Golpe de aríete ............................................................................................66 3.2.9 Nível estático ...............................................................................................66 3.2.10 Nível dinâmico ...........................................................................................66 3.2.11 Submergência ............................................................................................66 3.2.12 Escorva da bomba......................................................................................67 3.2.13 Autoaspirante ...........................................................................................67 3.2.14 Cavitação ....................................................................................................67 3.2.15 NPSH ..........................................................................................................67 3.2.16 Válvula de pé ou de fundo de poço ..........................................................68 3.2.17 Crivo ............................................................................................................68 3.2.18 Válvula de retenção ...................................................................................68 3.2.19 Pressão a atmosférica ..............................................................................68 3.2.20 Registro.......................................................................................................69 3.2.21 Manômetro..................................................................................................69 3.2.22 Vazão...........................................................................................................69 3.2.23 Hidráulica ...................................................................................................69 3.2.24 MCA (mca)...................................................................................................69 3.2.25 Bomba de afogada .....................................................................................69 3.3 PROJETO HIDRÁULICO – DEFINIÇÕES.........................................................70 3.3.1 Potência absorvida (BHP) e rendimento (η) das bombas.........................70 3.3.2 Rendimento (η) .............................................................................................71 3.3.3 Exemplo ........................................................................................................72 3.3.3.1 Cálculo da potência ..................................................................................72 3.3.3.2 Cálculo do rendimento..............................................................................72 3.3.4 Perdas de carga (hf), nº de reynolds (Re), velocidade de escoamento (V), diâmetros dos tubos, e altura manométrica total (AMT)....................................72 3.4 FATORES QUE INFLUENCIAM NAS PERDAS DE CARGA...........................73 3.5 Nº DE REYNOLDS (Re)....................................................................................75 3.6 VELOCIDADE DE ESCOAMENTO (V) ............................................................76
  • 10.
    10 3.7 DIÂMETRO DOSTUBOS .................................................................................76 3.8 ALTURA MANOMÉTRICA TOTAL (AMT).........................................................77 3.9 ESQUEMA TÍPICO DE UMA INSTALAÇÃO HIDRÁULICA PARA CAPTAÇÃO DE ÁGUA POR BOMBA CENTRÍFUGA .................................................................78 3.10 PROCEDIMENTOS BÁSICO PARA ESCOLHA DE UMA BOMBA CENTRÍFUGA (PARA ALTURA DE SUCÇÃO INFERIOR A 8 mca) ......................79 3.10.1 Critérios.......................................................................................................79 2.10.2 Exemplo ......................................................................................................80 3.10.3 Cálculo .......................................................................................................80 3.11 QUADRO PRÁTICO PARA CÁLCULO DO SISTEMA HIDRÁULICO COM BOMBA CENTRÍFUGA ...........................................................................................84 3.12 QUADRO PRÁTICO PARA CÁLCULO ...........................................................85 REFERÊNCIAS ......................................................................................................87 ANEXO ...................................................................................................................90
  • 11.
    11 1 TERMODINÂMICA Fonte: http://blog.poloar.com.br/ar-condicionado-fujitsu-como-funciona-um-ar-condicionado/ 1.1CALOR E TEMPERATURA Alguns conceitos básicos:  Calor: é o termo associado à transferência de energia térmica de um sistema a outro ou entre partes de um mesmo sistema, em virtude da diferença de temperaturas entre eles. Designa também calor como sendo a quantidade de energia térmica transferida em tal processo.  Energia Térmica: é o estado de agitação das partículas. Pode-se também definir com o somatório das energias de um sistema, ou ainda a médicas das energias de um sistema.
  • 12.
    12  Temperatura: Temperaturaé uma grandeza física que mensura a energia térmica contida nos corpos ou em um sistema. Todos os corpos possuem Energia Térmica. Quanto maior a temperatura, maior a agitação das partículas. Com o aumento de energia térmica, a temperatura: o Aumenta se não estiver em mudança de estado o Mantém constante até completara mudança de estado Podemos sentir as diferenças de temperatura por comparação: o Nosso corpo possui temperatura aproximada de 36,5º o Se mergulharmos a mão em uma vasilha com água a 50º podemos dizer que a água está “quente”.  Outro teste: Faça o seguinte experimento e comprove isso. Coloque três vasilhas sobre a mesa. Uma com água fria (água com gelo), outra com água quente e a terceira com água morna. Ponha uma das mãos dentro da vasilha que contém água fria e a outra, em água quente, deixando-as lá por alguns segundos (veja a ilustração abaixo): Fonte: BERNUY
  • 13.
    13 Em seguida retireas mãos dessas vasilhas e mergulhe–as na água morna. Ambas as mãos sentem a mesma temperatura? Apesar de ambas as mãos terem sido colocadas numa mesma vasilha de água morna, cada uma dará informação diferente: a mão que estava acostumada à água fria lhe informará uma temperatura maior do que a mão que estava em contato com a água quente. Certamente, essas sensações estão lhe fornecendo informações falsas, pois a água morna se encontra a uma temperatura uniforme.  Dois corpos com temperaturas diferentes em contato trocam calor entre si até haver equilíbrio térmico, do mais aquecido passa para o corpo menos aquecido: Fonte: BERNUY
  • 14.
    14 1.2 LEIS DATERMODINÂMICA A termodinâmica é baseada em leis estabelecidas experimentalmente: 1.2.1 Lei Zero da Termodinâmica EQUILÍBRIO TÉRMICO - Quando dois sistemas em equilíbrio termodinâmico têm igualdade de temperatura com um terceiro sistema também em equilíbrio, eles têm igualdade de temperatura entre si. Esta lei é a base empírica para a medição de temperatura. Ela também estabelece o que vem a ser um sistema em equilíbrio termodinâmico: dado tempo suficiente, um sistema isolado atingirá um estado final - o estado de equilíbrio termodinâmico. Em outras palavras, a lei zero da termodinâmica quer dizer que há uma tendência natural em quaisquer substâncias e ou ambientes, de trocar calor por um tempo necessário até que haja equilíbrio, sempre que houver duas ou mais substâncias ou sistemas com temperaturas diferentes. A lei zero da termodinâmica define os medidores de temperatura, os TERMÔMETROS. 1.2.2 Primeira Lei da Termodinâmica CONSERVAÇÃO DA ENERGIA - É o princípio da conservação da energia e da conservação da massa: "A energia do Universo, sistema mais vizinhança, é constante". Mesmo em situações em que dizemos que há perda de rendimento, isto quer dizer que a energia que não foi aproveitada para a realização de um determinado trabalho, foi desviada pelo atrito entre as peças, inércia dos corpos para iniciar ou cessar movimento, etc.
  • 15.
    15 1.2.3 Segunda Leida Termodinâmica O SENTIDO DA TROCA DE CALOR - Afirma que há processos que ocorrem numa certa direção mas não podem ocorrer na direção oposta. Isto quer dizer que sempre o corpo mais aquecido sede calor ao menos aquecido, e nunca o contrário. 1.2.4 Terceira Lei da Termodinâmica ZERO ABSOLUTO: estabelece um ponto de referência absoluto para a determinação da entropia, representado pelo estado derradeiro de ordem molecular máxima e mínima energia. Enunciada como "A entropia de uma substância cristalina pura na temperatura zero absoluto é zero". A terceira lei da termodinâmica ainda afirma que no zero absoluto, há total paralização atômica e total falta de energia. 1.3 TERMÔMETROS Termômetros são instrumentos utilizados para medir a temperatura de corpos ou sistemas. A maioria dos termômetros utiliza o fenômeno de dilatação dos corpos para medir uma temperatura. Neste caso, uma medição de temperatura é feita por comparação:  Uma escala é feita baseada em parâmetros: ex.: temperatura de fusão da água, de ebulição, etc.  Unidades de temperaturas mais comuns: o ºC (graus Celsius) convencionada pelo SI => 0ºC na fusão da água a 1 atm (nível do mar), 100ºC de ebulição e divisão de 1º o ºF (graus Fahrenheit) USA e países de língua inglesa => 32ºF na fusão da água a 1 atm (nível do mar), 212ºF de ebulição e divisão de 1º
  • 16.
    16 Temperatura do corpohumano... ºF => ºC o ºK (graus Kelvin) => 0ºK = zero absoluto = -273ºC ºC = ºK + 273  FÓRMULA GERAL => ºC  ºF  ºK: EXERCÍCIOS (CONVERTER): 85 ºK em ºC e ºF: 49 ºC em ºF e ºK: 150 ºF em ºC e ºK 125 ºC em ºK e ºF 1.4 ESCALAS DE TEMPERATURA Para a maior parte das pessoas a temperatura é um conceito intuitivo baseado nas sensações de "quente" e "frio" proveniente do tato. De acordo com a segunda lei da termodinâmica, a temperatura está relacionada com o calor ficando estabelecido que este, na ausência de outros efeitos, flui do corpo de temperatura mais alta para o de temperatura mais baixa espontaneamente. O funcionamento dos termômetros está baseado na lei zero da termodinâmica, pois são colocados em contato com um corpo ou fluido do qual se deseja conhecer a temperatura até que este entre em equilíbrio térmico com o respectivo corpo. A escala do aparelho foi construída comparando-a com um termômetro padrão ou com pontos físicos fixos de determinadas substâncias. Nas duas páginas seguintes, segue exemplo de três escalas de temperatura que são hoje mais usadas utilizadas e os correspondentes entre estas temperaturas entre si. São elas: KELVIN ( ºK ), escala Celsius ( ºC) e Fahrenheit (ºF).
  • 17.
  • 18.
  • 19.
    19 1.5 TERMÔMETROS Definição: Étodo instrumento utilizado para medir a temperatura de um corpo ou sistema.  Tipos de termômetros (faixas de temperaturas): o Líquidos em vidro (ex.: mercúrio) o Termômetro para o corpo humano o Termômetro de mínima e máxima o Termômetro de gás a volume constante o Termômetro bi-metálico (de ponteiro) o Termômetro de resistência (melhor precisão) o Termômetro laser Fonte: RUNTAL. (Site)
  • 20.
    20  CONSTRUÇÃO DEUM TERMÔMETRO: Como já exposto anteriormente, a medição de uma temperatura é forma de forma indireta e por comparação: o Volume de um líquido altera-se conforme a temperatura; o Comprimento de uma barra; o Resistência elétrica de um determinada condutor varia conforme a temperatura; o Volume / pressão de um gás; o Cor de uma determinada substância. Desta forma, para se construir um termômetro, utiliza-se destes materiais com suas propriedades naturais, fazendo comparações com a água, por exemplo. Em suas diversas fazes. Exemplo: o Escolhe-se um termômetro de coluna de álcool colorido de vermelho; o Coloca-se este termômetro em uma água misturada com gelo ao nível do mar (nestas condições sabe-se que a temperatura está a 0ºC; o Marca-se na escala do termômetro uma referência onde na altura da coluna de álcool colorido; o Aquece-se a água até o ponto de ebulição ao nível do mar, onde sabemos que a temperatura será de 100ºC; o Marca-se uma graduação no termômetro no local onde dilatou o álcool líquido; o Divide-se a distância marcada entre 0ºC e 100ºC em 100 partes, obtendo-se assim uma escala do termômetro. 1.6 O COMPORTAMENTO INCOMUM DA ÁGUA Líquidos geralmente aumentam em volume com o aumento de temperatura e têm coeficientes médios de expansão de volume dez vezes maiores do que dos sólidos. A água fria é uma exceção a regra: Conforme a temperatura aumenta de ºC até 4
  • 21.
    21 ºC, a águase contrai, e então, a sua densidade aumenta. Acima de 4º C, a água se expande com o aumento da temperatura e, então, sua densidade diminui. Portanto, a densidade da água atinge o valor máximo e 1 g / cm3 a 4 ºC. Podemos usar este comportamento incomum de expansão térmica da água para explicar porque uma lagoa começa a congelar na superfície em vez de no fundo. Quando a temperatura do ar cai de, por exemplo, 7ºC para 6ºC, a água da superfície também esfria e, consequentemente, diminui em volume. A água da superfície é mais densa que abaixo da superfície, que não esfriou, e diminui de volume. Como resultado, a água da superfície afunda, e a mais quente do fundo se move para a superfície. Quando a temperatura do ar está entre 4ºC e 0ºC, no entanto, a água da superfície se expande a medida que se esfria, ficando menos densa que abaixo da superfície. O processo de mistura para, e eventualmente a água da superfície congela. A medida que a água congela, o gelo permanece na superfície, porque é menos denso que a água. O gelo continua a se acumular na superfície, enquanto a água perto do fundo permanece a 4ºC. Se não fosse esse o caso, peixes e outras formas de vida marinha não sobreviveriam. 1.7 CALORIMETRIA  Calorimetria é a parte da termodinâmica que estuda a medida das quantidades de calor que são trocadas entre sistemas, colocados em contato, a diferentes temperaturas (TROCAS DE CALOR E SUAS RELAÇÕES).  QUANTIDADE DE CALOR: o É aquela capaz de alterar uma temperatura o Ou também é capaz de mudar um estado físico de um corpo
  • 22.
    22  UNIDADES DECALOR: Calor é uma forma de energia. Portanto, pode ser medida como as demais, como a energia mecânica, elétrica, etc.  Na refrigeração as unidades de calor são mais usadas são: o Cal, Kcal (SI – Sistema Internacional); o CALORIA (cal): É a quantidade de calor necessária para elevar de 14,5ºC a 15,5ºC a temperatura de 1 grama de água pura sob pressão normal (nível do mar ou 1 atm), e vice versa; o Btu (Sistema Britânico) o Btu (BRITISH THERMAL UNIT): É a quantidade de calor necessária para aquecer 1 lb (libra-massa = 454 g) de água pura, de 58,5ºF a 59,5ºF, sob pressão normal (nível do mar ou 1 atm), e vice versa. 1.8 RELAÇÕES ENTRE AS UNIDADES DE CALOR É muito comum manuais técnicos de refrigeração utilizarem variadas unidades de calor; As unidade mais comuns de calor são: Joule, BTU e Cal. Desta forma, torna-se bastante interessante conhecer as relações ou equivalências entre estas principais unidades de calor. Na tabela a seguir serão demonstradas as principais relações entre estas escalas de calor.
  • 23.
    23 EXERCÍCIOS (CONVERTER): 274.965 calpara Kcal e BTU: 10.000 BTU para Kcal: 3.500 BTU para cal: 456.898 cal para BTU:
  • 24.
    24 1.9 CAPACIDADE TÉRMICA oCapacidade Térmica é o quociente entre a quantidade de calor (Q) trocada pelo corpo e a correspondente variação de sua temperatura (∆t) o C = Q / ∆t o Unidades de capacidade térmica: cal / ºC; Kcal / ºC; J / ºC; Btu / ºF 1.10 CALOR ESPECÍFICO o Calor Específico é a quantidade de calor necessária para fazer a temperatura de 1g da substância variar 1ºC; o Unidades de calor específico: cal / gºC; Kcal / KgºC; J / KgºC; Btu / lbºF o Os metais têm baixo calor específico: com pequenas quantidades de calor variam grandes temperaturas o Para os gases, o calor específico varia com a pressão e o volume o O calor específico depende do estado físico do sistema, sendo maior no estado líquido do que no estado sólido o O calor específico nos sólidos e líquidos variará consideravelmente se a variação de temperatura for muito grande o Cada substância tem o seu calor específico, conforme tabela de algumas substâncias na página seguinte:
  • 25.
  • 26.
    26 1.11 EQUAÇÃO FUNDAMENTALDA CALORIMETRIA Esta fórmula expressa a quantidade de calor (Q) fornecida ou retirada de um corpo de massa (m) e de calor específico (c) quando este corpo sofre uma variação de temperatura (∆t):  Onde: o Q = Quantidade de calor fornecida ou retirada o m = massa o c = calor específico o ∆t = quantidade de variação da temperatura  Aplicações da equação fundamental da Calorimetria: o EXERCÍCIO 1: Temos 800 gramas de massa de água a 100 ºC. Quantas calorias essa quantidade de água deve perder para ficar com a temperatura de 10 ºC? Dado: c = 1 cal / g ºC
  • 27.
    27 o EXERCÍCIO 2:Calcular a quantidade de calor necessária para elevar a temperatura de 200 g de massa de água de 20 ºC para 80 ºC: Dado: c = 1 cal / g ºC 1.12 CALOR SENSÍVEL E CALOR LATENTE o Calor SENSÍVEL: É o calor necessário para alterações de temperatura (∆t ) para mais ou para menos (sem mudança de estado). É utilizada a fórmula da Equação fundamental da Calorimetria: Q = m . c . ∆t o Calor LATENTE: É o calor necessário para a mudança de estado, não havendo alteração de temperatura nesta fase. É utilizada a fórmula da Equação fundamental da Calorimetria sem a variação da temperatura: Q = m . c (onde “c” é o calor latente para alteração de fase). Portanto, quando um corpo cede ou recebe calor, este pode produzir no corpo dois efeitos diferentes: variação de temperatura ou mudança de estado. Se o efeito no corpo for apenas variação de temperatura é chamado de Calor Sensível. Porém, se o efeito no corpo for de mudança de estado é chamado de Calor Latente. 1.13 MUDANÇA DE ESTADO FÍSICO OU DE FASE  A matéria pode apresentar-se em três estados físicos: o Sólido o Líquido o Gasoso  Uma mesma substância pode ser encontrada na natureza nas três formas, conforme a temperatura e / ou pressão em que se ela encontra:
  • 28.
    28 Fonte: COLÉGIO WEB.(Site)  As mudanças de estado recebem nomes especiais: o Evaporação: Mudança de estado líquido para estado gasoso lentamente em qualquer temperatura (apenas na superfície do líquido) o Ebulição: Mudança de estado líquido para gasoso (elevando a temperatura até o ponto de ebulição) E.: Água fervendo. o Calefação: Mudança de estado líquido para gasoso bruscamente numa temperatura maior que a temperatura de ebulição (Ex.: Jogar água em uma chapa aquecida) o Liquefação: Mudança de estado de gasoso para líquido (Ex.: condensação da água)
  • 29.
    29 o Fusão: Mudançade estado de sólido para líquido (Ex.: Gelo passando para água) o Solidificação: Mudança de estado de líquido para sólido (Ex.: Água passando para gelo) o Sublimação: Mudança de estado de Sólido para gasoso (Ex.: Naftalina) o Resublimação: Mudança de estado de Gasoso para sólido (Ex.: Gelo seco) 1.14 CÁLCULO DA QUANTIDADE DE CALOR SENSÍVEL E LATENTE Quando deseja-se elevar ou abaixar a temperatura de uma determinada substância, onde a mesma irá também passar por mudança de fase, esta será calculada em separado e somados os resultados. Exemplo: Elevar a temperatura de 75 g de massa (m) de água de -20 ºC até 40 ºC. Este cálculo ocorrera em 3 etapas, como pode-se ver no gráfico a seguir: Fonte: Acervo Próprio
  • 30.
    30 Desta forma, haveráum cálculo de -20 ºC até 0 ºC (Calor sensível), a temperatura irá se manter constante até a fusão de toda a massa de água (calor latente de fusão) e haverá um cálculo para esta mudança de fase. Após, ocorrerá o aumento da temperatura de 0 ºC 40 ºC e um cálculo correspondente para este aumento de temperatura (calor sensível). Enfim, os 3 resultados deverão ser somados para se saber a quantidade de calor necessária para estas etapas. o Fórmula para este caso: Fonte: Acervo Próprio NOTA: Como a água estará em várias faixas de temperaturas (∆t) e 2 estados (sólido e líquido), em cada situação se deverá utilizar o calor específico correspondente da água, como na tabela abaixo:
  • 31.
    31 Fonte: SENAI.MG. 2001 Assimfica o cálculo: Ou 9 825 x 0,003968 = 38,99 BTU
  • 32.
    32 EXERCÍCIOS: Faça os cálculose o gráfico representativo para os exercícios abaixo: 1) Calcule as calorias necessárias para baixar a temperatura de 1.250 g de massa de água de 135 ºC até 35 ºC: 2) Calcule a quantidade de calor necessária para elevar a temperatura de 1 litro de água de 25 ºC até 100 ºC:
  • 33.
    33 1.15 TABELA PRÁTICAPARA CÁLCULO DE MUDANÇA DE TEMPERATURA E FASE (SÓLIDO, LÍQUIDO E GASOSO) Considere a situação conforme o gráfico abaixo, de 3 faixas de elevação ou diminuição de temperatura (∆t) e 2 mudanças de estado (mudanças de fase): Fonte: Acervo próprio Com o objetivo de facilitar o cálculo da quantidade de calor necessária, utilizaremos a tabela a seguir, fazendo um cálculo de -10 ºC até 120 ºC de 250 g de massa de água, ao nível do mar: Fonte: Acervo próprio
  • 34.
    34  EXERCÍCIO: Preencha atabela de cálculo abaixo, calculando a quantidade de calor necessária para elevar a temperatura de -34 ºC até 133 ºC de 1,50 litros de água ao nível do mar: Fonte: Acervo Próprio 1.16 POTÊNCIA TÉRMICA A potência térmica mede a rapidez com que o calor é trocado entre dois corpos. Para determinar a potência térmica de uma fonte térmica que fornece uma quantidade de calor Q num intervalo de tempo ∆t, faz-se a razão entre as grandezas: Onde: P = Potência Térmica Q = Quantidade de Calor ∆t = Quantidade de temperatura para elevar ou retirar.
  • 35.
    35 A potência édada no SI por watt (W), mas usualmente tem-se: cal/s; cal/min; kcal/min. No Brasil, apesar de ser adepto ao Sistema Internacional (SI), na área da refrigeração é muito comum se utilizar a unidade BTU / h.  EXERCÍCIOS: 01 – Utilizando uma fonte de calor de 5 Kcal / hora, quanto tempo levará para trocar 180 Kcal de uma determinada substância? 02 – Quanto tempo levará para resfriar 50 litros de água de um bebedouro de 30ºC para 5ºC utilizando um equipamento de capacidade igual a 20.000 BTU? 1.17 POTÊNCIA TÉRMICA – Ar condicionado No ramo da atividade Refrigeração para cálculo de dimensionamento de aparelhos, instalações, etc., utiliza-se a Tonelada de refrigeração (TR): 1 TR = 12.000 BTU
  • 36.
    36 Para dimensionamento deum cômodo de uma casa normal (altura do teto aproximadamente 3 metros, 1 TR tem capacidade de refrigerar um cômodo de14 m2 , gastando um tempo aproximado de 1 hora para aclimatar todo o ambiente. Em situações onde a altura do teto seja diferente de 3 metros e haja outras interferências, como, portas abertas ou objetos que emitam fonte de calor considerável, pode-se adicionar um fator proporcional a estas variáveis. Para cálculos mais complexos, utiliza-se outros métodos que não fazem parte da grade curricular deste curso.  EXERCÍCIOS: 01 – Quanto tempo levará para Climatizar uma sala de 3,5 metros X 4,5 metros utilizando um aparelho de ar condicionado de 8.000 BTU? 02 – Calcular a quantidade de BTU necessária para climatizar um auditório com 10 metros de largura por 25 metros de comprimento (altura do teto = 4,5 metros => fazer uma regra de três simples). Após, distribuir em quantidades de aparelhos de ar condicionado encontrados no mercado, considerando também uma boa distribuição dos aparelhos no ambiente. 1.18 TRANSMISSÃO DE CALOR Transmissão de calor é a passagem de energia térmica de um corpo para o outro, ou uma parte para o mesmo corpo. A transmissão de calor se dá dos pontos de maior temperatura para os de menor temperatura. Enquanto a Calorimetria estuda quantitativamente a troca de calor entre corpos de diferentes temperaturas, a Transmissão de Calor estuda o fluxo de energia através dos corpos em função do tempo.
  • 37.
    37  FORMAS DETROCAS DE CALOR: o Condução ou Contato: Esta transmissão se dá em qualquer estado físico que um corpo se encontra, ou seja: sólido, líquido ou gasoso. Os sólidos são melhores condutores que os líquidos que, por sua vez, são melhores condutores que os materiais gasosos. Existem bons condutores de fluxo de calor, como os metais; há também maus condutores, ou isolantes, que dificultam esse fluxo. Uma utilização prática desta lei da física são os Trocadores de Calor: Fonte: OPTEK. (Site) o Convecção ocorre nos Fluidos, Líquidos ou gases. Este fenômeno da física ocorre devido a diferença de densidade das próprias substâcias em função da temperatura, ou seja: A moléculas de uma mesma substância aquecida sobem, fazendo com que as menos aquecidas possam descer. Exemplos: Uma vasilha de água em ebulição, o evaporador de uma geladeira (congelador) na parte de cima para o ar mais frio descer, um balcão de frios em um supermercado, um sistema de aquecedor solar, etc.
  • 38.
    38 Figura ilustrativa deum aquecedor solar: Fonte: BRASIL ESCOLA. (Site) o Radiação ou Irradiação – Esta transmissão de calor se dá por ondas eletromagnéticas. Esta ocorre em qualquer meio, inclusive o vácuo, desde que não seja “refletido”).
  • 39.
    39 Desta forma entendemoscomo o calor do sol chega até nós: Fonte: BRASIL ESCOLA. (Site) Uma aplicação prática das três formas de transmissão de calor é o funcionamento do isolamento térmico de uma garrafa de café: Fonte: BRASIL ESCOLA. (Site) A construção da garrafa evita as três formas de transmissão de calor. A qualidade da conservação da temperatura do café irá depender dos materiais utilizados na fabricação da mesma.
  • 40.
    40  FUNCIONAMENTO DEUM REFRIGERADOR DOMÉSTICO: Nos refrigeradores domésticos existe muita "física" há no seu funcionamento. Eles são máquinas térmicas que retiram calor de um certo interior jogando-o no meio externo, produzindo assim o "frio" no interior. Abaixo, um esquema básico de funcionamento de um refrigerador: Fonte: CEPA. USP (Site) Na física, todo líquido quando evapora retira calor. O compressor, ao elevar a pressão de um gás, o faz passar para o estado liquido e o faz fluir por tubos até o evaporador (congelador). Ao passar pela válvula de expansão no evaporador, o líquido volta para o estado gasoso onde retira calor do evaporador, baixando a sua temperatura. É bom lembrar que a saída do compressor gera pressão e a entrada gera sucção, facilitando a evaporação dos gases (para volta-lo para o estado líquido).
  • 41.
    41 As principais partese finalidades de um refrigerador são:  Compressor: é responsável pela elevação da pressão até 10 atmosferas e sua temperatura está aproximadamente a 41 ºC;  Condensador: faz com que o gás passe para o estado líquido ainda em alta pressão e então o líquido passa para o tubo capilar;  Tubo capilar: ao sair dele terá sua pressão e temperatura diminuídas alcançando valores próximos de 1,6 atmosferas e - 19 ºC, nesta situação passa para o evaporador;  Evaporador: onde retorna ao estado gasoso e agora esta mudança de fase ocorre a baixa pressão. É no evaporador que o gás recebe calor dos alimentos colocados no interior da geladeira, retirando calor da parte interna, então, podemos perceber que a "produção de frio" ocorre no evaporador.
  • 42.
    42 2 CALDEIRA AVAPOR (Gerador de Vapor) Fonte: SERMATEC. (Site) 2.1 DEFINIÇÃO Caldeira é um gerador de vapor, que aplica energia térmica a água para a geração do mesmo. Em outras palavras: trata-se de uma máquina ou dispositivo de engenharia onde a energia química, através da queima de um combustível, transforma-se em energia térmica. O vapor é amplamente utilizado na indústria, tanto para aquecimento, quanto para acionamento mecânico, e geração de energia.
  • 43.
    43 O vapor d´águaé preferido dentre outras substâncias em função de seu alto calor específico aliado a ampla disponibilidade da água no meio industrial. Uma caldeira é constituída, basicamente, por um vaso fechado sob pressão, no qual se introduz água líquida que se transforma em vapor ao receber o calor da combustão na fornalha. 2.2 EXEMPLOS DE APLICAÇÃO DO VAPOR  Aquecimento  Acionamento Mecânico  Geração de Energia Elétrica  Aplicação na Indústria: o Têxtil: tinturaria o Alimentos: Processo de industrialização. o Bebidas : lavação de garrafas; tanques de xaropes, pasteurizadores. o Papel: Obtenção da celulose, fabricação e secagem do papel. o Indústria Madeireira: cozimento de toras; secagem de tábuas e o Lâminas em estufas; em prensas para compensados. o Indústria de vulcanização e recauchutagem: estufas para secagem de pneus, vulcanização, prensas. o Metalúrgica o Química.  Hospitais: na lavanderia para esterilização de roupas, na cozinha.
  • 44.
    44 2.3 EXEMPLOS UMATURBINA A VAPOR UTILIZADA EM UMA USINA TERMELÉTRICA Fonte: BLOG DO PROFESSOR CARLÃO. (Blog) 2.4 COMBUSTÍVEIS UTILIZADOS NAS CALDEIRAS O combustível é toda substância capaz de reagir quimicamente com o oxigênio (comburente) e liberar energia térmica (calor), é identificado como combustível:  Sólido: Madeira, cascas de árvores, carvão, bagaço de cana, etc.  Líquido: Óleo combustível (óleo grosso), óleo diesel, álcool, etc.  Gasoso: Gás Natural. 2.5 QUEIMADORES Os queimadores são os dispositivos da caldeira utilizados para queimar o combustível. Os tipos de queimadores variam conforme o tipo de combustível a ser queimado.
  • 45.
    45 2.5.1 Queimador deóleo combustível O queimador de óleo combustível e na maioria dos combustíveis líquidos consiste em uma bomba para pressurizar o combustível e um bico injetor para pulverizá-lo em alta pressão na câmara de combustão. Fonte: BABCOCK CALDEIRAS LTDA. (Site) 2.5.2 Queimador de combustíveis Diferentemente da queima dos combustíveis líquidos, a combustão dos gases ocorre sem as etapas de nebulização e destilação das gotículas de combustível. Fonte: BABCOCK CALDEIRAS LTDA. (Site)
  • 46.
    46 2.5.3 Queimador decarvão É comum a utilização de carvão em caldeiras de forma pulverizada. Na figura a seguir tem-se um esquema do sistema de pulverização de carvão em uma caldeira. Fonte: BABCOCK CALDEIRAS LTDA. (Site) 2.5.4 Queima em grelha As grelhas são dispositivos tipo grade, podendo ser fixas ou móveis, onde são queimados os seguintes combustíveis:  Madeira picada em cavacos  Madeira cortada em pedaços maiores (lenha)  Madeira tipo cerragem  Casca de Arroz  Bagaço de Cana Fonte: BABCOCK CALDEIRAS LTDA. (Site)
  • 47.
    47 2.6 CLASSIFICAÇÃO DASCALDEIRAS As caldeiras são classificadas em aquatubolares, flamotubulares, e elétricas: 2.6.1 Caldeiras aguatubolares Neste tipo de caldeira a água circula por dentro de diversos tubos, posicionados lado a lado, formando uma parede do tipo feixe tubular. Os tubos são aquecidos pelo calor da fornalha, transformando a água dentro do tubo em vapor. Fonte: EBAH. (Site) As unidades geradoras de vapor, também chamadas simplesmente de caldeiras, podem ser equipadas com os seguintes componentes:  Fornalha: Local onde ocorre a queima de combustível, pode ter queimadores de gás, de óleo, ou grelha para combustíveis sólidos.  Caldeira: É o local onde a água se transforma de líquido para vapor, contém tubos, tambor separador e parede isolante.  Superaquecedor: São tubos em feixes utilizados para aumentar a temperatura do vapor na saída da caldeira.
  • 48.
    48  Atemperador: Éum sistema de regulagem da temperatura final do vapor gerado, reduz a temperatura através da injeção de água no vapor superaquecido.  Economizador: É um sistema de pré-aquecimento da água de entrada da caldeira, composta de tubos instalados na saída dos gases, tem a função de aumentar o rendimento da caldeira, e reduzir o choque térmico devido a entrada de água no sistema.  Aquecedor de ar: Aproveita o calor dos gases da saída da combustão para aquecer o ar de entrada. Na figura a seguir tem-se um exemplo de unidade geradora de vapor completa. Fonte: SERMATEC. (Site)
  • 49.
    49 2.6.2 Caldeiras flamotubulares Sãoequipamentos geradores de vapor de uso limitado às instalações de pequeno porte, com pressões inferiores a 15 bar ou capacidades inferiores a 15 ton/h de vapor saturado. Nas caldeiras flamotubulares os gases de combustão circulam por dentro dos tubos. Podem ser projetadas para um ou mais passe de gases de combustão. O nível de água deve estar sempre acima da tubulação para evitar superaquecimento. A fornalha pode ser interna ou externa. Caldeiras com fornalha interna são conhecidas como Escocesas e são projetadas para queima de óleo ou gás natural. Apresentam rendimento de até 84% e operam com pressão de até 15 bar (1500 kPa). O diâmetro das fornalhas pode variar de 400mm a 1300mm e são projetadas e construídas com paredes corrugadas para melhorar o rendimento térmico e a para admitir maiores pressões. Paredes lisas devem ser evitadas. O diâmetro do corpo cilíndrico pode variar de 900mm a 2800mm. O diâmetro dos tubos pode variar de 30mm a 100mm. Em termos gerais as caldeiras flamotubulares apresentam menores gastos com manutenção. O tratamento químico da água é importante.
  • 50.
    50 Na figura aseguir temos um exemplo de caldeira flamotubular: Fonte: SERMATEC. (Site) 2.6.3 Caldeiras elétricas Utilizam Resistências Tubulares de Imersão ligados a energia elétrica para aquecimento da água no interior das caldeiras. As resistências de imersão são fabricadas em tubos de cobre, aço inox e ferro. As mais usadas em caldeiras são as de cobre. Abaixo os tipos de resistências elétricas utilizados em caldeiras. Fonte: IMC. Resistências Elétricas. (Site)
  • 51.
    51 Abaixo, um diagramade distribuição das resistências no interior de um vazo de pressão de uma caldeira elétrica. FULTON. (Site) 2.7 DISPOSITIVOS DE SEGURANÇA EM CALDEIRAS As caldeiras possuem uma série de dispositivos para garantir a sua segurança de funcionamento. Á manutenção deve manter o equipamento e os dispositivos em perfeito funcionamento para garantir a sua segurança. 2.7.1 Os principais dispositivos e cuidados com a segurança  Controle do nível de água, que pode ser do tipo automático com reguladores pneumáticos, termohidráulico, ou manual com visor de nível.  Controle de pressão de trabalho, pressostatos e manômetros. Em casos de pressão excessiva um dispositivo pode reduzir o combustível, ou o fluxo de ar para os queimadores.
  • 52.
    52  Válvulas desegurança, são dispositivos auxiliares, previstos para atuarem em caso de falha do sistema de controle da combustão, evitando aumento excessivo da pressão.  Sopradores de fuligem: tem a finalidade de evitar que ocorra depósito de cinzas nas paredes externas dos tubos. 2.7.2 Algumas medidas de segurança no funcionamento da caldeira  Quando a pressão estiver próxima a de trabalho abre-se lentamente a válvula de vapor para evitar golpe de aríete  Observa-se atentamente os manômetros e o indicador de nível.  O operador de caldeira não deve se afastar do local de trabalho.  Faz-se anotações diárias e verifica-se o funcionamento de todos os acessórios e equipamentos.  Dá-se descarga manual nas válvulas de segurança pelo menos uma vez por dia.  Em caldeiras aquotubulares limpa-se os tubos com soprador de fuligem.  Não perder o controle do nível da água.  Adiciona-se corretamente os produtos para tratamento da água.  Segue-se as orientações da CIPA e colabora-se com ela.  Manter limpo e em ordem o local de trabalho.
  • 53.
    53 2.8 NR13 (CALDEIRASE VASOS DE PRESSÃO) 2.8.1 Generalidades Por trabalhar com altas pressões de vapor, as caldeiras estão enquadradas na NR13, onde esta define parâmetros legais e técnicos para garantir a segurança das mesmas. 2.8.2 Profissional habilitado Para efeito desta NR, considera-se "Profissional Habilitado" aquele que tem competência legal para o exercício daprofissão de engenheiro nas atividades referentes a projeto de construção, acompanhamento operação e manutenção, inspeção e supervisão de inspeção de caldeiras e vasos de pressão, em conformidade com a regulamentação profissional vigente no País. 2.8.3 Pontos relevantes da NR 13 - Pressão Máxima de Trabalho Permitida - PMTP ou Pressão Máxima de Trabalho Admissível – PMTA: é o maior valor de pressão compatível com o código de projeto, a resistência dos materiais utilizados, as dimensões do equipamento e seus parâmetros operacionais.  ITENS DE SEGURANÇA MAIS IMPORTANTES: a) válvula de segurança com pressão de abertura ajustada em valor igual ou inferior a PMTA; b) instrumento que indique a pressão do vapor acumulado; c) injetor ou outro meio de alimentação de água, independente do sistema principal, em caldeiras combustível sólido; d) sistema de drenagem rápida de água, em caldeiras de recuperação de álcalis; e) sistema de indicação para controle do nível de água ou outro sistema que evite o superaquecimento por alimentação deficiente.
  • 54.
    54 2.8.4 Identificação indelével a)fabricante; b) número de ordem dado pelo fabricante da caldeira; c) ano de fabricação; d) pressão máxima de trabalho admissível; e) pressão de teste hidrostático; f) capacidade de produção de vapor; g) área de superfície de aquecimento; h) código de projeto e ano de edição 2.8.5 Prontuário da caldeira - código de projeto e ano de edição; - especificação dos materiais; - procedimentos utilizados na fabricação, montagem, inspeção final e determinação da PMTA; - conjunto de desenhos e demais dados necessários para o monitoramento da vida útil da caldeira; - características funcionais; - dados dos dispositivos de segurança; - ano de fabricação; - categoria da caldeira; 2.8.6 Outros pontos relevantes  Registros de segurança;  Projeto de Instalação, alterações ou reparos;  Relatórios de Inspeção;  Em caso de venda da caldeira, a documentação deve acompanha-la;  Enquadramento como vaso de pressão;
  • 55.
    55  Procedimentos departida e parada, operação e cuidados com o meio ambiente;  Treinamento de Segurança para operações de Unidades de Precesso; NOTA: Para mais informações, consultar NR13. 2.9 CICLO RANKINE O Ciclo Rankine é um ciclo termodinâmico reversível que converte calor em trabalho. O calor é suprido via externa para um laço fechado, onde é usual usar água. Ele é nomeado após a descoberta de William John Macquorn Rankine, um escocês polimata e professor da Universidade de Glasgow. O ciclo termodinâmico Rankine é fundamental subjacente dos motores a vapor. O ciclo Rankine mostra a descrição fechada do processo da operação de vapor das máquinas térmicas mostra geralmente descobrindo nas usinas de generação elétrica a combustão de combústiveis fossíl como o carvão, gás natural, e gasolina. Fonte: WIKIPÉDIA. (Site)
  • 56.
    56 2.9.1 Motores avapor 2.9.1.1 Generalidades Após a geração do vapor na Caldeira, este será conduzido para realizar trabalho, sendo este desde aquecimento, lavar e esterilizar objetos, ou mover algum tipo de motor para que este, por sua vez, converta calor e pressão em energia mecânica (movimento), podendo movimentar máquinas ou geradores elétricos. Os motores a vapor mais utilizados são: Turbinas Vapor e Motor tipo Pistão. 2.9.1.2 Turbinas a vapor Turbina a Vapor é a Máquina Térmica que utiliza a energia do vapor sob forma de energia cinética. Deve transformar em energia mecânica a energia contida no vapor vivo sob a forma de energia térmica e de pressão. O elemento básico da turbina é a roda ou rotor, que conta com paletas, hélices, lâminas ou cubos colocados ao redor de sua circunferência, de forma que o fluido em movimento produza uma força tangencial que impulsiona a roda, fazendo-a girar. A turbina a vapor é atualmente o mais usado entre os diversos tipos de acionadores primários existentes. Uma série de favorável de características concorreu para que a turbina a vapor se destacasse na competição com outros acionadores. Fonte: WIKIPÉDIA. (Site)
  • 57.
    57 2.9.1.3 Motores avapor tipo pistão Os motores a vapor tipo pistão foram o primeiro tipo de motor a ser amplamente usado. Eles foram inventados por Thomas Newcomen, em 1705, e James Watt (que lembramos a cada vez que falamos sobre lâmpadas de 60 watts) fez grandes melhorias nas máquinas a vapor, em 1769. Os motores a vapor movimentaram as primeiras locomotivas, barcos a vapor e fábricas e, dessa forma, foram a base da Revolução Industrial. O diagrama a seguir mostra os componentes principais de um motor a vapor com pistão. Este tipo de motor seria característico numa locomotiva a vapor. Fonte: FORUM OUTER SPACE TERRA. (Site)
  • 58.
    58 3 BOMBAS EINSTALAÇÕES HIDRÁULICAS Fonte: SCHNEIDER MOTOBOMBAS, 2006. 3.1 CONSIDERAÇÕES GERAIS SOBRE BOMBAS HIDRÁULICAS 3.1.1 Definição Bombas Hidráulicas são Máquinas Hidráulicas Operatrizes, isto é, máquinas que recebem energia potencial (força motriz de um motor ou turbina), e transformam parte desta potência em energia cinética (movimento) e energia de pressão (força), cedendo estas duas energias ao fluído bombeado, de forma a recirculá-lo ou transportá-lo de um ponto a outro. 3.1.2 Classificação Devido a grande diversidade das bombas existentes, adotaremos uma classificação resumida, dividindo-as em dois grandes grupos:
  • 59.
    59  Bombas Centrífugas: Tambémconhecidas como Turbo-Bombas, Hidro ou Roto-dinâmicas, ou ainda bombas de transferência. Nas bombas centrífugas, a movimentação do fluído ocorre pela ação de forças que se desenvolvem na massa do mesmo, em consequência da rotação de um eixo no qual é acoplado um disco (rotor, impulsor) dotado de pás (palhetas, hélice), o qual recebe o fluído pelo seu centro e o expulsa pela periferia, pela ação da força centrífuga, daí o seu nome mais usual. A Bomba Centrífuga tem como base de funcionamento a criação de duas zonas de pressão diferenciadas, uma de baixa pressão (sucção) e outra de alta pressão (recalque). Para que ocorra a formação destas duas zonas distintas de pressão, é necessário existir no interior da bomba a transformação da energia mecânica (de potência), que é fornecida pela máquina motriz (motor ou turbina), primeiramente em energia cinética, a qual irá deslocar o fluído, e posteriormente, em maior escala, em energia de pressão, a qual irá adicionar “carga” ao fluído para que ele vença as alturas de deslocamento.
  • 60.
    60 Abaixo, figuras ilustrativasde tipos de bombas centrífugas: Fonte: SCHNEIDER MOTOBOMBAS, 2006. Para expressar este funcionamento, existem três partes fundamentais na bomba: o Corpo (carcaça): que envolve o rotor, acondiciona o fluído, e direciona o mesmo para a tubulação de recalque; o Rotor (impelidor): constitui-se de um disco provido de pás (palhetas) que impulsionam o fluído; o Eixo de acionamento, que transmite a força motriz ao qual está acoplado o rotor, causando o movimento rotativo do mesmo. Antes do funcionamento, é necessário que a carcaça da bomba e a tubulação de sucção, estejam totalmente preenchidas com o fluído a ser bombeado.
  • 61.
    61  Bombas Volumétricas: NasBombas Volumétricas, ou de Deslocamento Positivo, a movimentação do fluído é causada diretamente pela ação do órgão de impulsão da bomba que obriga o fluído a executar o mesmo movimento a que está sujeito este impulsor (êmbolo, engrenagens, lóbulos, palhetas). Dá-se o nome de volumétrica porque o fluído, de forma sucessiva, ocupa e desocupa espaços no interior da bomba, com volumes conhecidos, sendo que o movimento geral deste fluído dá-se na mesma direção das forças a ele transmitidas, por isso a chamamos de deslocamento positivo. As Bombas Volumétricas dividem- se em:  Êmbolo ou Alternativas (pistão, diafragma, membrana): Fonte: SCHNEIDER MOTOBOMBAS, 2006.
  • 62.
    62  Engrenagens: Fonte: SCHNEIDERMOTOBOMBAS, 2006.  Paletas: Fonte: SCHNEIDER MOTOBOMBAS, 2006.
  • 63.
    63  Parafuso: Fonte: SCHNEIDERMOTOBOMBAS, 2006.  APLICAÇÃO DE UM SISTEMA HIDRÁULICO COM BOMBA CENTRÍFUGA: Fonte: Manual Técnico SCHNEIDER MOTOBOMBAS
  • 64.
    64  APLICAÇÃO DEUM SISTEMA HIDRÁULICO COM BOMBA VOLUMÉTRICA: Fonte: INDÚSTRIA HOJE. (Site) NOTA: NESTA APOSTILA ABORDAREMOS APENAS CÁLCULOS ENVOLVENDO INSTALAÇÕES HIDRÁULICAS COM UTILIZAÇÃO DE BOMBAS CENTRÍFUGAS. 3.2 TERMOS HIDRÁULICOS MAIS USADOS EM BOMBEAMENTO 3.2.1 Altura de sucção (AS) Desnível geométrico (altura em metros), entre o nível dinâmico da captação e o bocal de sucção da bomba. OBS.: Em bombas centrífugas normais, instaladas ao nível do mar e com fluído bombeado a temperatura ambiente, esta altura não pode exceder 8 metros de coluna d’água (8 mca).
  • 65.
    65 3.2.2 Altura derecalque (AR) Desnível geométrico (altura em metros), entre o bocal de sucção da bomba e o ponto de maior elevação do fluído até o destino final da instalação (reservatório, etc.). 2.2.3 Altura manométrica total (AMT) Altura total exigida pelo sistema, a qual a bomba deverá ceder energia suficiente ao fluído para vencê-la. Leva-se em consideração os desníveis geométricos de sucção e recalque e as perdas de carga por atrito em conexões e tubulações. AMT = Altura Sucção + Altura Recalque + Perdas de Carga Totais (*) (*) Perdas em Tubulações/Conexões e Acessórios Unidades mais comuns: mca, Kgf/cm² , Lb/Pol², Onde: 1 Kgf/cm² = 10 mca = 14,22 Lb/Pol² 3.2.4 Perda de carga nas tubulações Atrito exercido na parede interna do tubo quando da passagem do fluído pelo seu interior. É mensurada obtendo-se, através de coeficientes, um valor percentual sobre o comprimento total da tubulação, em função do diâmetro interno da tubulação e da vazão desejada. 3.2.5 Perda de carga localizada nas conexões Atrito exercido na parede interna das conexões, registros, válvulas, dentre outros, quando da passagem do fluído. É mensurada obtendo-se, através de coeficientes, um comprimento equivalente em metros de tubulação, definido em função do diâmetro nominal e do material da conexão.
  • 66.
    66 3.2.6 Comprimento datubulação de sucção Extensão linear em metros de tubo utilizados na instalação, desde o injetor ou válvula de pé até o bocal de entrada da bomba. 3.2.7 Comprimento da tubulação de recalque Extensão linear em metros de tubo utilizados na instalação, desde a saída da bomba até o ponto final da instalação. 3.2.8 Golpe de aríete Impacto sobre todo o sistema hidráulico causado pelo retorno da água existente na tubulação de recalque, quando da parada da bomba. Este impacto, quando não amortecido por válvula(s) de retenção, danifica tubos, conexões e os componentes da bomba. 3.2.9 Nível estático Distância vertical em metros, entre a borda do reservatório de sucção e o nível (lâmina) da água, antes do início do bombeamento. 3.2.10 Nível dinâmico Distância vertical em metros, entre a borda do reservatório de sucção e o nível (lâmina) mínimo da água, durante o bombeamento da vazão desejada. 3.2.11 Submergência Distância vertical em metros, entre o nível dinâmico e o injetor (Bombas Injetoras), a válvula de pé (Bombas Centrifugas Normais), ou filtro da sucção (Bombas Submersas).
  • 67.
    67 3.2.12 Escorva dabomba Eliminação do ar existente no interior da bomba e da tubulação de sucção. Esta operação consiste em preencher com o fluído a ser bombeado todo o interior da bomba e da tubulação de sucção, antes do acionamento da mesma. Nas bombas autoaspirantes basta eliminar o ar do interior da mesma pois, até 8 mca de sucção, a bomba eliminará o ar da tubulação automaticamente. 3.2.13 Autoaspirante O mesmo que Autoescorvante, isto é, bomba centrífuga que elimina o ar da tubulação de sucção, não sendo necessário o uso de válvula de pé na sucção da mesma, desde que, a altura de sucção não exceda 8 mca. 3.2.14 Cavitação Fenômeno físico que ocorre em bombas centrífugas no momento em que o fluído succionado pela mesma tem sua pressão reduzida, atingindo valores iguais ou inferiores a sua pressão de vapor (líquido => vapor). Com isso, formam-se bolhas que são conduzidas pelo deslocamento do fluído até o rotor onde implodem ao atingirem novamente pressões elevadas (vapor => líquido). Este fenômeno ocorre no interior da bomba quando o NPSHd (sistema), é menor que o NPSHr (bomba). A cavitação causa ruídos, danos e queda no desempenho hidráulico das bombas. 3.2.15 NPSH Sigla da expressão inglesa - Net Positive Suction Head a qual divide-se em: o NPSH disponível - Pressão absoluta por unidade de peso existente na sucção da bomba (entrada do rotor), a qual deve ser superior a pressão de
  • 68.
    68 vapor do fluídobombeado, e cujo valor depende das características do sistema e do fluído; o NPSH requerido - Pressão absoluta mínima por unidade de peso, a qual deverá ser superior a pressão de vapor do fluído bombeado na sucção da bomba (entrada de rotor) para que não haja cavitação. Este valor depende das características da bomba e deve ser fornecido pelo fabricante da mesma; O NPSHdisp deve ser sempre maior que o NPSHreq (NPSHd > NPSHr + 0,6) 3.2.16 Válvula de pé ou de fundo de poço Válvula de retenção colocada na extremidade inferior da tubulação de sucção para impedir que a água succionada retorne à fonte quando da parada do funcionamento da bomba, evitando que esta trabalhe a seco (perda da escorva). 3.2.17 Crivo Grade ou filtro de sucção, normalmente acoplado a válvula de pé, que impede a entrada de partículas de diâmetro superior ao seu espaçamento. 3.2.18 Válvula de retenção Válvula de sentido único colocada na tubulação de recalque para evitar o golpe de aríete. Utilizar uma válvula de retenção a cada 20 mca de AMT. 3.2.19 Pressão a atmosférica Peso da massa de ar que envolve a superfície da terra até uma altura de ± 80 Km e que age sobre todos os corpos. Ao nível do mar, a pressão atmosférica é de 10,33 mca ou 1,033 Kgf/cm² (760 mm/Hg).
  • 69.
    69 3.2.20 Registro Dispositivo paracontrole da vazão de um sistema hidráulico. 3.2.21 Manômetro Instrumento que mede a pressão relativa positiva do sistema. 3.2.22 Vazão Quantidade de fluído que a bomba deverá fornecer ao sistema, por unidade de tempo. Unidades mais comuns: m3 /h, l/h, l/min, l/s Onde: 1 m3 /h = 1000 l/h = 16.67 l/min = 0.278 l/s 3.2.23 Hidráulica Hidráulica é uma palavra que vem do grego e é a união de hydra = água, e aulos = condução/aula/tubo é, portanto, uma parte da física que se dedica a estudar o comportamento dos líquidos em movimento e em repouso. É responsável pelo conhecimento das leis que regem o transporte, a conversão de energia, a regulagem e o controle do fluido agindo sobre suas variáveis (pressão, vazão, temperatura, viscosidade, etc). 3.2.24 MCA (mca) Metro de coluna d'água. As equivalências entre mca e outras unidades são: 10 m.c.a = 1 Kgf/cm² = 100 Kpa 3.2.25 Bomba de afogada Nível da bomba abaixo do nível do reservatório:
  • 70.
    70 Neste caso nãohaverá válvula de pé (para bomba centrífuga) para cálculo da perda de carga na sucção nem haverá altura da sucção (ou poderá ser positiva) para o cálculo da altura manométrica e para o cálculo do NPSHd (verificação da cavitação). 3.3 PROJETO HIDRÁULICO – DEFINIÇÕES 3.3.1 Potência absorvida (BHP) e rendimento (η) das bombas DEFINIÇÃO: A Potência Absorvida (BHP) de uma bomba é a energia que ela consome para transportar o fluído na vazão desejada, altura estabelecida, com o rendimento esperado. No entanto, o BHP (Brake Horse Power), denominado “Consumo de Energia da Bomba”, é função de duas outras potências também envolvidas no funcionamento de uma bomba. São elas: A. Potência hidráulica ou de elevação (WHP); B. Potência útil (PU). Porém, na prática, apenas a potência motriz faz-se necessária para se chegar ao motor de acionamento da bomba, cuja expressão matemática é expressa por: BHP ou PM = Q x H x 0,37 η Onde: BHP ou PM = Potência motriz absorvida pela bomba (requerida para a realização do trabalho desejado); Q = Vazão desejada, em m3 /h; H = Altura de elevação pretendida, em mca; 0,37 = Constante para adequação das unidades;
  • 71.
    71 η = Rendimentoesperado da bomba, ou fornecido através da curva característica da mesma, em percentual (%). 3.3.2 Rendimento (η) O rendimento de uma bomba é a relação entre a energia oferecida pela máquina motriz (motor) e a absorvida pela máquina operatriz (bomba). Isto é evidenciado uma vez que o motor não transmite para o eixo toda a potência que gera, assim como a bomba, que necessita uma energia maior do que consome, devido as suas perdas passivas na parte interna. O rendimento global de uma bomba divide-se em: A. Rendimento Hidráulico (H): Leva em consideração o acabamento interno superficial do rotor e da carcaça da bomba. Varia também de acordo com o tamanho da bomba, de 20% a 90%; B. Rendimento Volumétrico (V): Leva em consideração os vazamentos externos pelas vedações (gaxetas) e a recirculação interna da bomba. Bombas autoaspirantes, injetoras e de alta pressão possuem rendimento volumétrico e global inferior às convencionais; C. Rendimento Mecânico(M): Leva em consideração que apenas uma parte da potência necessária ao acionamento de uma bomba é usada para bombear. O restante, perde-se por atrito; Portanto, o rendimento global será: η = Q x H x 0,37 BHP Ou seja: a relação entre a potência hidráulica e a potência absorvida pela bomba.
  • 72.
    72 3.3.3 Exemplo Uma bombaoperando com 42 m³/h em 100 mca, que apresenta na curva característica um rendimento de 57%. Qual a potência necessária para acioná-la? Qual o rendimento da bomba? 3.3.3.1 Cálculo da potência PM = Q x H x 0,37 PM = 42 x 100 x 0,37 PM = 27,26 ≅ 30 CV (*) η 57 (*) Comercialmente, para uma potência requerida de 27,26 CV, teríamos que acoplar à bomba um motor de 30 CV. 3.3.3.2 Cálculo do rendimento η = 42 x 100 x O,37 => η = 51,8% 27,26 3.3.4 Perdas de carga (hf), nº de reynolds (Re), velocidade de escoamento (V), diâmetros dos tubos, e altura manométrica total (AMT) DEFINIÇÃO DE CARGA (hf): Denomina-se perda de carga de um sistema, o atrito causado pela resistência da parede interna do tubo quando da passagem do fluído pela mesma. As perdas de carga classificam-se em:  CONTÍNUAS: Causadas pelo movimento da água ao longo da tubulação. É uniforme em qualquer trecho da tubulação (desde que de mesmo diâmetro), independente da posição do mesmo. (Tabela 5);  LOCALIZADAS: Causadas pelo movimento da água nas paredes internas e emendas das conexões e acessórios da instalação, sendo maiores quando
  • 73.
    73 localizadas nos pontosde mudança de direção do fluxo. Estas perdas não são uniformes, mesmo que as conexões e acessórios possuam o mesmo diâmetro. (Tabela 6). 3.4 FATORES QUE INFLUENCIAM NAS PERDAS DE CARGA A. Natureza do fluído escoado (peso específico, viscosidade): Para bombas fabricadas basicamente para o bombeamento de água, cujo peso específico é de 1.000 Kgf/m3, não há necessidade de agregar-se fatores ao cálculo de perdas de carga, em se tratando desta aplicação; B. Material empregado na fabricação dos tubos e conexões (PVC, ferro) e tempo de uso: Comercialmente, os tubos e conexões mais utilizados são os de PVC e Ferro Galvanizado, cujas diferenças de fabricação e acabamento interno (rugosidade e área livre) são bem caracterizadas, razão pela qual apresentam coeficientes de perdas diferentes, conforme as Tabelas 5 e 6; C. Diâmetro da tubulação: O diâmetro interno ou área livre de escoamento, é fundamental na escolha da canalização já que, quanto maior a vazão a ser bombeada, maior deverá ser o Ø interno da tubulação, afim de diminuir-se as velocidades e, consequentemente, as perdas de carga. São muitas as fórmulas utilizadas para definir-se qual o diâmetro mais indicado para a vazão desejada. Para facilitar os cálculos, todas as perdas já foram tabeladas pelos Fabricantes de diferentes tipos de tubos e conexões. No entanto, para efeito de cálculos, a fórmula mais utilizada para chegar-se aos diâmetros de tubos é a Fórmula de Bresse, expressa por: Onde: D = Diâmetro interno do tubo, em metros;
  • 74.
    74 K= 0,9 -Coeficiente de custo de investimento x custo operacional. Usualmente aplica-se um valor entre 0,8 e 1,0; Q = Vazão, em m³/ s; A Fórmula de Bresse calcula o diâmetro da tubulação de recalque, sendo que, na prática, para a tubulação de sucção adota-se um diâmetro comercial imediatamente superior. As Tabelas 4 e 5 indicam os diâmetros dos tubos conforme a sua aplicação. D. Comprimento dos tubos e quantidade de conexões e acessórios: Quanto maior o comprimento e o nº de conexões, maior será a perda de carga proporcional do sistema. Portanto, o uso em excesso de conexões e acessórios causará maiores perdas, principalmente em tubulações não muito extensas; E. Regime de escoamento (laminar ou turbulento): O regime de escoamento do fluído é a forma como ele desloca-se no interior da tubulação do sistema, a qual determinará a sua velocidade, em função do atrito gerado. No regime de escoamento laminar, os filetes líquidos (moléculas do fluído agrupadas umas às outras) são paralelos entre si, sendo que suas velocidades são invariáveis em direção e grandeza, em todos os pontos. O regime laminar é caracterizado quando o nº de Reynolds (Re), for inferior a 2.000. No regime de escoamento turbulento, os filetes movem-se em todas as direções, de forma sinuosa, com velocidades variáveis em direção e grandeza, em pontos e instantes diferentes (figura 8). O regime turbulento é caracterizado quando o nº de Reynolds (Re), for superior a 4.000.
  • 75.
    75 Obviamente, o regimede escoamento mais apropriado para um sistema de bombeamento é o laminar pois, acarretará menores perdas de carga por atrito em função do baixo número de interferências existentes na linha. Fonte: SHNEIDER, 2008 3.5 Nº DE REYNOLDS (Re) É expresso por: Onde: Re = Nº de Reynolds; V = Velocidade média de escoamento, em m/s; D = Diâmetro da Tubulação, em metros; Ʋ = Viscosidade cinemática do Líquido, em m2 /s; Para a água doce, ao nível do mar e a temperatura de 25ºC, a viscosidade cinemática (Ʋ) é igual a 0,000001007 m²/s; O escoamento será: Laminar: Re < 2.000 Turbulento : Re > 4.000 Entre 2.000 e 4.000, o regime de escoamento é considerado crítico.
  • 76.
    76 NOTA: Na prática,o regime de escoamento da água em tubulações é sempre turbulento. Desta forma, em nossos estudos sempre consideraremos Re TURBULENTO. 3.6 VELOCIDADE DE ESCOAMENTO (V) Derivada da equação da continuidade, a velocidade média de escoamento aplicada em condutos circulares é dado por: Onde: V = Velocidade de escoamento, em m/s; Q = Vazão, em m³/s; π (Pi) = 3,1416 (constante); D = Diâmetro interno do tubo, em metros; Para uso prático, as velocidades de escoamento mais econômicas são: Velocidade de Sucção ≤ 1,5 m/s (limite 2,0 m/s) Velocidade de Recalque ≤ 2,5 m/s (limite 3,0 m/s) 3.7 DIÂMETRO DOS TUBOS A. Tubulação de Recalque: Pelas Tabelas 4 e 5, podemos escolher o diâmetro mais adequado para os tubos de recalque, observando a linha grifada, em função da melhor relação custo benefício possível. (custo de investimento x custo operacional); Custo de Investimento: Custo total dos tubos, bomba, conexões, acessórios, etc. Quanto menor o diâmetro dos tubos, menor o investimento inicial, e vice-versa;
  • 77.
    77 Custo Operacional: Custode manutenção do sistema. Quanto maior o diâmetro dos tubos, menor será a altura manométrica total (AMT), a potência do motor, o tamanho da bomba e o gasto de energia. Consequentemente, menor será o custo operacional, e vice-versa; B. Tubulação de Sucção: Na prática, define-se esta tubulação usando-se o diâmetro comercial imediatamente superior ao definido anteriormente para recalque, analisando-se, sempre, o NPSHd do sistema. 3.8 ALTURA MANOMÉTRICA TOTAL (AMT) A determinação desta variável é de fundamental importância para a seleção da bomba hidráulica adequada ao sistema em questão. Pode ser definida como a quantidade de trabalho necessário para movimentar um fluído, desde uma determinada posição inicial, até a posição final, incluindo nesta “carga” o trabalho necessário para vencer o atrito existente nas tubulações por onde desloca-se o fluído. Matematicamente, é a soma da altura geométrica (diferença de cotas) entre os níveis de sucção e descarga do fluído, com as perdas de carga distribuídas e localizadas ao longo de todo o sistema (altura estática + altura dinâmica). Portanto: Hman = Hgeo + hf A expressão utilizada para cálculo é: AMT = AS + AR + Perdas de Cargas Totais (hfr + hfs) NOTA: Para aplicações em sistemas onde existam na linha hidráulica, equipamentos e acessórios (irrigação, refrigeração, máquinas, etc.) que requeiram pressão adicional para funcionamento, deve-se acrescentar ao cálculo da AMT a pressão requerida para o funcionamento destes equipamentos.
  • 78.
    78 3.9 ESQUEMA TÍPICODE UMA INSTALAÇÃO HIDRÁULICA PARA CAPTAÇÃO DE ÁGUA POR BOMBA CENTRÍFUGA Fonte: SHNEIDER MOTOBOMBAS, 2006.
  • 79.
    79 3.10 PROCEDIMENTOS BÁSICOPARA ESCOLHA DE UMA BOMBA CENTRÍFUGA (PARA ALTURA DE SUCÇÃO INFERIOR A 8 mca) 3.10.1 Critérios Para calcular-se com segurança a bomba centrífuga adequada a um determinado sistema de abastecimento de água, são necessários alguns dados técnicos fundamentais do local da instalação e das necessidades do projeto: A. Altura de Sucção => AS, em metros; B. Altura de Recalque => AR, em metros; C. Distância em metros entre a captação, ou reservatório inferior, e o ponto de uso final, ou reservatório superior, isto é, caminho a ser seguido pela tubulação, ou, se já estiver instalada, o seu comprimento em metros lineares, e os tipos e quantidades de conexões e acessórios existentes; D. Diâmetro (Pol ou mm) e material (PVC ou metal), das tubulações de sucção e recalque, caso já forem existentes; E. Tipo de fonte de captação e vazão disponível na mesma, em m³/h; F. Vazão requerida, em m³/h; G. Capacidade máxima de energia disponível para o motor, em CV, e tipo de ligação (monofásico ou trifásico ) quando tratar-se de motores elétricos; H. Altitude do local em relação ao mar; I. Temperatura máxima e tipo de água (rio, poço, chuva).
  • 80.
    80 2.10.2 Exemplo Baseados nestasinformações podemos calcular a bomba necessária para a seguinte situação: Fonte: SHNEIDER MOTOBOMBAS, 2006. 3.10.3 Cálculo a) Escolha do diâmetro de tubulação: A escolha do diâmetro da tubulação de recalque pode ser feita pela Fórmula de Bresse (adicionando um percentual de perda de carga por metro de tubo), pela Tabela 5 (Completa) ou pela Tabela 4 (Resumida). Para a tubulação de sucção, adota-se um diâmetro comercial imediatamente superior ao recalque. Assim, temos Diâmetro Recalque: 1 ¼” (40 mm) Diâmetro Sucção: 1 ½” (50 mm) b) VELOCIDADE DE ESCOAMENTO (V): Derivada da equação da continuidade, a velocidade média de escoamento aplicada em condutos circulares é dado por:
  • 81.
    81 Lembrete: Vazão emm3 / s e Diâmetro em m (metros). Aplicando a fórmula, temos: Para uso prático, as velocidades de escoamento mais econômicas são: Velocidade de Sucção ≤ 1,5 m/s (limite 2,0 m/s) Velocidade de Recalque ≤ 2,5 m/s (limite 3,0 m/s) c) Cálculo da perda de carga (PC)  Para o recalque: Pela tabela 6 vemos os comprimentos equivalentes para as conexões em PVC: PCr = (Comprimento linear da tubulação + Comprimento equivalente) x Fator de perda de carga: Tabela 5 – Perda de carga em tubulações de PVC: Fazendo regra de 3 simples para 180 metros de tubo, teremos 7 % de perda de carga. PCr = ( 180 +10,05 ) x 7% => PCr = 13,30 mca
  • 82.
    82  Para asucção: Tabela 6 - Comprimentos equivalentes para as conexões em PVC: PCs = ( 5 + 19,90 ) x 2,5% => PCs = 0,62 mca NOTA: Para BOMBA AFOGADA – Nível da bomba abaixo do nível do reservatório, não será necessária a válvula de pé com crivo. d) Cálculo da altura manométrica total (AMT): AMT = As + Ar + PCs + PCr AMT = 0,5 + 25 + 0,62 + 13,30 AMT = 39,42 mca NOTA: Para BOMBA AFOGADA – Nível da bomba abaixo do nível do reservatório, não haverá a altura de sucção. e) Determinação da Motobomba: AMT = 40 mca Vazão = 4 m³/h f) Determinação do NPSHd:
  • 83.
    83 Ho = 9,58mca (tabela 1, considerando altitude de 600 metros acima do nível do mar) As = 0,50 m (dado) => Para bomba afogada, este valor será positivo. Hv = 0,753 mca (tabela 2 para temperatura até 40 ºC) PCs = 0,62 mca (calculado) NPSHd = 9,58 – 0,753 – 0,50 – 0,62 => NPSHd = 7,71 mca (*) (*) NOTA: Este valor deverá ser comparado aos ábacos da Tabela 7 ou Tabela 8 (somando-se 0,6. O valor de NPSHd deverá ser maior do que NPSHr + 0,6 do ábaco. Caso contrário, haverá cavitação. Pela consulta ao ábaco da tabela 7, encontramos um valor aproximado de 2,5 + 0,6 = 3,1 mca. Neste caso não ocorrerá cavitação. NOTAS: 1) Para BOMBA AFOGADA – Nível da bomba abaixo do nível do reservatório, não haverá a altura de sucção ou será positiva, aumentando a garantia de não haver a cavitação. 2) O teorema de Bernoulli utiliza a fórmula abaixo para a determinação do NPSHd: Onde:
  • 84.
    84 PR = Pressãodo Reservatório [mca] => Quando se tratar de reservatório pressurizado HO = Pressão Atmosférica em relação a altitude do local [mca] PV = Pressão de Vapor em função da temperatura [mca] => Ver tabela 2 As = Desnível entre a bomba e a válvula de pé (sucção) [m] VS = Velocidade do fluido na sucção [m/s] G = Aceleração da Gravidade no local [m/s2 ] PCs = Perda de Carga na Sucção [mca] g) Cálculo da Potência do Motor de Acionamento da Bomba: (*) Rendimento da bomba fornecido pelo fabricante conforme condições de trabalho. Para efeito didático, consideraremos 60 % de rendimento para este cálculo. (**) Comercialmente, para uma potência requerida de 0,9867 cv, teríamos que acoplar à bomba um motor de 1 cv. 3.11 QUADRO PRÁTICO PARA CÁLCULO DO SISTEMA HIDRÁULICO COM BOMBA CENTRÍFUGA Para fins didáticos, utilizaremos o quadro resumo abaixo para facilitar o cálculo:
  • 85.
    85 3.12 QUADRO PRÁTICOPARA CÁLCULO a) DIÂMETRO DA TUBULAÇÃO: RECALQUE => Tabela 4 (Conforme Vazão): _________ (mm) ou _______ ” SUCÇÃO => Tabela 4 (Imediatamente Superior): _________ (mm) ou _______ ” b) VELOCIDADE DE ESCOAMENTO (V): c) PERDA DE CARGA (PC): PCr = (Comprimento linear da tubulação + Comprimento equivalente) x Fator de perda de carga: PCr = ( _______ + _______ ) x ___ % => PCr = _______ mca
  • 86.
    86 PCs = (_______ + _______ ) x ___ % => PCs = _______ mca d) ALTURA MANOMÉTRICA TOTAL (AMT): AMT = As + Ar + PCs + PCr AMT = _____ + _____ + _____ + _____ => AMT = ______ mca e) ESPECIFICAÇÃO DA MOTOBOMBA: AMT = ______ mca (Arredondar para cima AMT) Vazão = ______ m³/h f) DETERMINAÇÃO DO NPSHd (Verificação de Cavitação): NPSHd = Ho (Tabela 1) – Hv (Tabela 2) – As (Dado) – PCs (Calculado) NPSHd = _____ – _____ – _____ – _____ => NPSHd = _____ mca (*) Ver na Tabela 7 ou Tabela 8: => Se NPSHd maior que (NPSHr + 0,6) do ábaco. Caso contrário, haverá cavitação. NPSHd (maior) (menor) que (NPSHr + 0,6) => Cavitação? ( S ) ( N ) g) Cálculo da Potência do Motor de Acionamento da Bomba:
  • 87.
    87 REFERÊNCIAS ARAÚJO, Gilberto Ferreirade. Refrigeração: Termodinâmica. 2 ed. SENAI – FIEMG. Belo Horizonte: 2001. 82 p BABCOCK CALDEIRAS LTDA. (Site). Disponível em: <http://www.babcock- wanson.pt/produtos_queimadores_princ.aspx>. Acesso em: 01 abr. 2014. BERNUY, Alfonso Chíncaro. Módulos didáticos de física: eixo II: transferência, transformação e conservação da energia: tema 3 energia térmica. Disponível em: <http://crv.educacao.mg.gov.br/sistema_crv/documentos/md/em/fisica/2010-08/md- em-fs-06.pdf>. Acesso em: 01 abr. 2014. BLOG DO PROFESSOR CARLÃO. (Blog). Disponível em: <http://blogdoprofessorcarlao.blogspot.com.br/2008/05/mquinas-trmicas-e-refrigerao- aula-4.html>. Acesso em: 01 abr. 2014. BOMBAS: Guia Básico. Procel Indústria: Edição Seriada, 2009. 239 p. BRASIL ESCOLA. (Site). Disponível em: < http://www.brasilescola.com/fisica/aquecimento-agua-por-energia-solar.htm>. Acesso em: 01 abr. 2014. COLÉGIO WEB. (site) Disponível em: <http://www.colegioweb.com.br/trabalhos-escolares/4-ano/os-estados-fisicos-da- agua.html >. Acesso em: 01 abr. 2014. CEPA .USP. (Site). Disponível em: <http://www.cepa.if.usp.br/energia/energia1999/Grupo2B/Refrigeracao/geladeira.htm >. Acesso em: 01 abr. 2014. CREDER, Hélio. Instalações de ar condicionado. 6 ed. Reimpr. Rio de Janeiro: LTC, 2004. 318p. EBAH. (Site). Disponível em: <http://www.ebah.com.br/content/ABAAABHK8AI/anexo-i-geradores-vapor>. Acesso em: 01 abr. 2014.
  • 88.
    88 IMC – ResistênciasElétricas. (Site). Disponível em: <http://www.imcltda.com.br/ebulidores.html>. Acesso em: 01 abr. 2014. FORUM OUTER SPACE TERRA. (Site). Disponível em: <http://forum.outerspace.terra.com.br/index.php?threads/engenharia-um-pouco- sobre-motores.49216/ >. Acesso em: 01 abr. 2014. FULTON. (Site). Disponível em: <http://www.fulton.com/ >. Acesso em: 01 abr. 2014. INDÚSTRIA HOJE. (Site). Disponível em: < http://www.industriahoje.com.br/o-que-e- e-como-funciona-uma-bomba-hidraulica >. Acesso em: 01 abr. 2014. LIMA, Epaminondas Pio C. Mecânica das Bombas. 2. ed. Rio de Janeiro: Editora Interciência, 2003. 610 p. MACINTYRE, Archibald Joseph. Bombas e instalações de bombeamento. 2. ed. Rio de Janeiro: LTC, c1997. 782 p. MINHAS AULAS DE FÍSICAS (site). Disponível em: <http://minhasaulasdefisica.blogspot.com.br/2012/03/potencia-termica.html>. Acesso em: 01 abr. 2014. MUNSON, Bruce Roy. Fundamentos da Mecânica dos Fluidos. 2.ed. Edgard Blucher Ltda São Paulo 1997. 804 p. NOGUEIRA, L. A. H. Turbinas a Vapor: Conceito, Operação e Manutenção. Itujubá, MG. Apostila Fubai. OPTEK. (Site). Disponível em: <http://www.optek.com/Application_Note/geral/Portuguese/5/trocador_de_calor_- _deteccao_de__fuga-vazamento_(oleo_em_agua).asp >. Acesso em: 01 abr. 2014.
  • 89.
    89 RUNTAL. (Site) Disponívelem: <http://www.runtal.com.br/pg_00179.php>. Acesso em: Acesso em: 01 abr. 2014. SANTOS, Sérgio Lopes dos. Bombas e Instalações Hidráulicas. São Paulo: LCTE Editora, 2007. 253 p. SCHNEIDER MOTOBOMBAS. Manual Técnico. Joinville: 2006. 44 p. SENAI.MG. Refrigeração: termodinâmica. Belo Horizonte: Senai.MG. 2001. SERMATEC. (Site). Disponível em: <http://www.sermatec.com.br/produtos/caldeiras- aquatubulares/ >. Acesso em: 01 abr. 2014. VAN WYLEN, Gordon John. Fundamentos da Termodinâmica Clássica. 4. ed. Edgard Blucher Ltda São Paulo 1995. 589 p. WIKIPEDIA. (Site). Disponível em: <http://pt.wikipedia.org/wiki/Ciclo_Rankine >. Acesso em: 01 abr. 2014.
  • 90.
  • 91.
  • 92.
  • 93.