SIM NÃO
SIM NÃO
SIM NÃO
SIM NÃO N/A
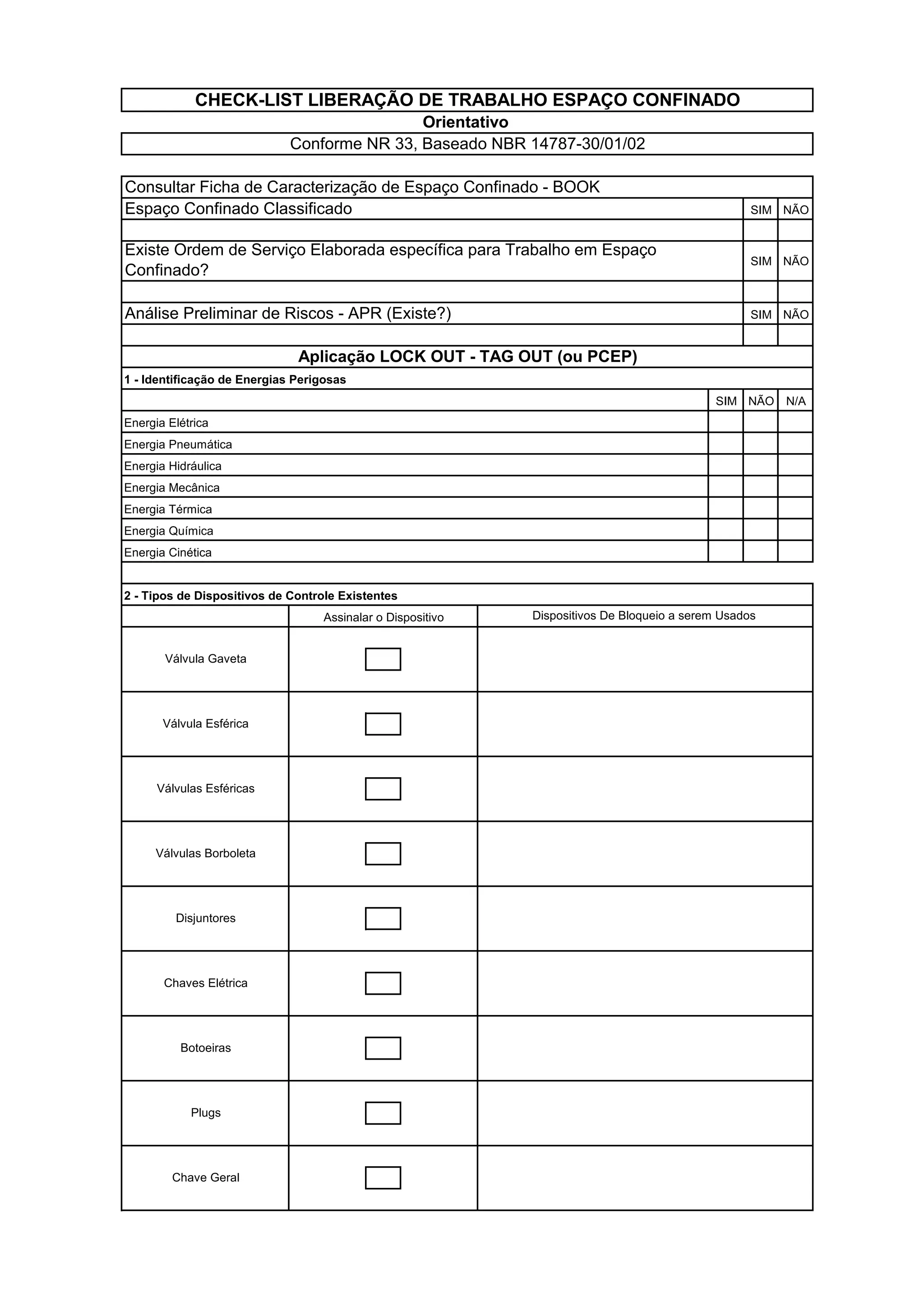
CHECK-LIST LIBERAÇÃO DE TRABALHO ESPAÇO CONFINADO
Orientativo
Conforme NR 33, Baseado NBR 14787-30/01/02
Válvula Gaveta
Válvula Esférica
Válvulas Esféricas
Válvulas Borboleta
Disjuntores
Consultar Ficha de Caracterização de Espaço Confinado - BOOK
Espaço Confinado Classificado
Dispositivos De Bloqueio a serem Usados
Chave Geral
Assinalar o Dispositivo
Chaves Elétrica
Análise Preliminar de Riscos - APR (Existe?)
Existe Ordem de Serviço Elaborada específica para Trabalho em Espaço
Confinado?
2 - Tipos de Dispositivos de Controle Existentes
Energia Elétrica
Energia Pneumática
Energia Hidráulica
Energia Mecânica
Energia Térmica
Energia Química
Energia Cinética
Aplicação LOCK OUT - TAG OUT (ou PCEP)
1 - Identificação de Energias Perigosas
Botoeiras
Plugs
SIM NÃO
SIM NÃO
4 - Desligar Equipamento, Máquina, dispositivo, etc.
5 - Isolamento: desligar chave geral, energias, disjuntores, válvulas etc.
6 - Efetuar Bloqueio SIM NÃO
Colocação do Dispositivo de Bloqueio Conforme Definido
Cadeado Para Bloqueio
Cartão de Identificação de Bloqueio
SIM NÃO
8 - Teste de Verificação ou Controle Do Isolamento SIM NÃO
Utilizar o multímetro para verificar se realmente o equipamento está desenergizado.
Ir até o Painel e tentar ligar através do botão liga / desliga confirmando se o isolomento está correto.
Checar novamente se não existe energia armazenada.
Retornar todas as seletoras na posição de desligado ou OFF.
9 - Antes de destravar comunicou as pessoas envolvidas? SIM NÃO
Providenciar Isolamento da Área Assinale X
Outros:
SIM NÃO
SIM NÃO
SIM NÃO
Confirmação de documentos SIM NÃO
NOTA: A Permissão de Trabalho deve ser aberta e fechada no inicio e termino do trabalho em um dia, caso o trabalho continue
mais 1 dia, necessário abri nova PT
NOTA: A Permissão de Trabalho deve ser aberta e fechada no inicio e termino do trabalho em um dia, caso o trabalho continue
mais 1 dia, necessário abri nova PT
Cones
Tela de Isolamento
Fita Zebrada
Placa de Sinalização
Foi feito?
3 - Comunicação
Foi Avisado
Avisar as Pessoas Afetadas que ira ser desligado o Equipamento, Máquina, dispositivo, etc.
7 - Descarregar a energia Armazenada - Visualmente pelo manômetro com aparelhos no caso de energia
elétrica, drenando no caso de energias hidráulica ou pneumática (estado ENERGIA ZERO)
Identificação de Trabalho Especifico (Com base em APR)
Inertização
Caso Afirmativo Solicitar PT para trabalho, aplicar chek-list de trabalho altura
Trabalho em Altura
Caso Afirmativo Solicitar PT para trabalho, aplicar chek-list de trabalho a quente
Trabalho a Quente
Checar se a parte que você desligou realmente não pode ser religada ou seja, deve-se tentando ligar.
Com Base na APR feita Previamente e no BOOK de Espaços Confinados
Aplicação de Pulgar
Insuflação
Exaustão
Integração
Curso Especifico de acordo com trabalho, Eletricista, NR 35, Soldador etc. Em Validade
Equipamentos Para entrada trabalho em espaço confinado N/A SIM NÃO
Equipamento Intrinsecamente Seguro
EPI`s
Sistema Arcofil com cilindro de fuga
EPR
Equipamento para trabalho em Altura
SIM NÃO
Plano de Atendimento a Emergências (existe?)
Avisar Equipe de Resgate (manter equipe de prontidão)
SIM NÃO
Realizar Medições no Espaço Confinado e preencher na PET
Medição em três pontos diferentes/níveis diferente
Preencher PET em 3 vias. SIM NÃO
Com Supervisor
Com Trabalhador Autorizado
No local de Trabalho
SIM NÃO
Verificação de carteirinha de trabalho especifico (Validade do curso, reciclagem, etc)
ASO (exames específicos)
Foi Feito?
Foi Feito?
Foi Feito?
Preencher PT de trabalho especifico
Téc.em Seg do Trabalho: Fernando D. Dias
Check list de espaço confinado
Check list de espaço confinado
Check list de espaço confinado

Check list de espaço confinado

  • 1.
    SIM NÃO SIM NÃO SIMNÃO SIM NÃO N/A CHECK-LIST LIBERAÇÃO DE TRABALHO ESPAÇO CONFINADO Orientativo Conforme NR 33, Baseado NBR 14787-30/01/02 Válvula Gaveta Válvula Esférica Válvulas Esféricas Válvulas Borboleta Disjuntores Consultar Ficha de Caracterização de Espaço Confinado - BOOK Espaço Confinado Classificado Dispositivos De Bloqueio a serem Usados Chave Geral Assinalar o Dispositivo Chaves Elétrica Análise Preliminar de Riscos - APR (Existe?) Existe Ordem de Serviço Elaborada específica para Trabalho em Espaço Confinado? 2 - Tipos de Dispositivos de Controle Existentes Energia Elétrica Energia Pneumática Energia Hidráulica Energia Mecânica Energia Térmica Energia Química Energia Cinética Aplicação LOCK OUT - TAG OUT (ou PCEP) 1 - Identificação de Energias Perigosas Botoeiras Plugs
  • 2.
    SIM NÃO SIM NÃO 4- Desligar Equipamento, Máquina, dispositivo, etc. 5 - Isolamento: desligar chave geral, energias, disjuntores, válvulas etc. 6 - Efetuar Bloqueio SIM NÃO Colocação do Dispositivo de Bloqueio Conforme Definido Cadeado Para Bloqueio Cartão de Identificação de Bloqueio SIM NÃO 8 - Teste de Verificação ou Controle Do Isolamento SIM NÃO Utilizar o multímetro para verificar se realmente o equipamento está desenergizado. Ir até o Painel e tentar ligar através do botão liga / desliga confirmando se o isolomento está correto. Checar novamente se não existe energia armazenada. Retornar todas as seletoras na posição de desligado ou OFF. 9 - Antes de destravar comunicou as pessoas envolvidas? SIM NÃO Providenciar Isolamento da Área Assinale X Outros: SIM NÃO SIM NÃO SIM NÃO Confirmação de documentos SIM NÃO NOTA: A Permissão de Trabalho deve ser aberta e fechada no inicio e termino do trabalho em um dia, caso o trabalho continue mais 1 dia, necessário abri nova PT NOTA: A Permissão de Trabalho deve ser aberta e fechada no inicio e termino do trabalho em um dia, caso o trabalho continue mais 1 dia, necessário abri nova PT Cones Tela de Isolamento Fita Zebrada Placa de Sinalização Foi feito? 3 - Comunicação Foi Avisado Avisar as Pessoas Afetadas que ira ser desligado o Equipamento, Máquina, dispositivo, etc. 7 - Descarregar a energia Armazenada - Visualmente pelo manômetro com aparelhos no caso de energia elétrica, drenando no caso de energias hidráulica ou pneumática (estado ENERGIA ZERO) Identificação de Trabalho Especifico (Com base em APR) Inertização Caso Afirmativo Solicitar PT para trabalho, aplicar chek-list de trabalho altura Trabalho em Altura Caso Afirmativo Solicitar PT para trabalho, aplicar chek-list de trabalho a quente Trabalho a Quente Checar se a parte que você desligou realmente não pode ser religada ou seja, deve-se tentando ligar. Com Base na APR feita Previamente e no BOOK de Espaços Confinados Aplicação de Pulgar Insuflação Exaustão
  • 3.
    Integração Curso Especifico deacordo com trabalho, Eletricista, NR 35, Soldador etc. Em Validade Equipamentos Para entrada trabalho em espaço confinado N/A SIM NÃO Equipamento Intrinsecamente Seguro EPI`s Sistema Arcofil com cilindro de fuga EPR Equipamento para trabalho em Altura SIM NÃO Plano de Atendimento a Emergências (existe?) Avisar Equipe de Resgate (manter equipe de prontidão) SIM NÃO Realizar Medições no Espaço Confinado e preencher na PET Medição em três pontos diferentes/níveis diferente Preencher PET em 3 vias. SIM NÃO Com Supervisor Com Trabalhador Autorizado No local de Trabalho SIM NÃO Verificação de carteirinha de trabalho especifico (Validade do curso, reciclagem, etc) ASO (exames específicos) Foi Feito? Foi Feito? Foi Feito? Preencher PT de trabalho especifico Téc.em Seg do Trabalho: Fernando D. Dias