UNIVERSIDADE FEDERAL DO PARANÁ 
SETOR DE TECNOLOGIA 
DEPARTAMENTO DE TRANSPORTES 
DISPOSITIVOS DE DRENAGEM 
PARA OBRAS RODOVIÁRIAS 
CURSO: ENGENHARIA CIVIL 
DISCIPLINA: TT-048 – INFRAESTRUTURA VIÁRIA 
PROFESSORES: Djalma Martins Pereira 
Eduardo Ratton 
Gilza Fernandes Blasi 
Márcia de Andrade Pereira 
Wilson Küster Filho 
M 
MARÇO/2009
DTT/UFPR Dispositivos de Drenagem para Obras Rodoviárias 2 
Sumário 
1 INTRODUÇÃO ........................................................................................................................... 3 
2 DEFINIÇÃO E CLASSIFICAÇÃO DOS TIPOS DE DRENAGEM ..................................... 4 
3 DISPOSITIVOS DE DRENAGEM ........................................................................................... 7 
3.1 DRENAGEM SUPERFICIAL ................................................................................................. 7 
3.1.1 VALETA DE PROTEÇÃO DE CORTE ...................................................................................................... 7 
3.1.2 VALETA DE PROTEÇÃO DE ATERRO .................................................................................................... 8 
3.1.3 SARJETA DE CORTE .................................................................................................................................. 8 
3.1.4 SARJETA E MEIO-FIO DE ATERRO ........................................................................................................ 9 
3.1.5 SARJETA DE CANTEIRO CENTRAL E DE BANQUETA .................................................................... 10 
3.1.6 TRANSPOSIÇÃO DE SEGMENTOS DE SARJETAS .......................................................................... 10 
3.1.7 SAÍDA E DESCIDA D’ÁGUA EM TALUDE ............................................................................................. 12 
3.1.8 DISSIPADOR DE ENERGIA ..................................................................................................................... 13 
3.1.9 BUEIRO DE GREIDE ................................................................................................................................. 14 
3.1.10 CAIXA COLETORA .................................................................................................................................... 14 
3.1.11 BACIA DE CAPTAÇÃO E VALA DE DERIVAÇÃO ................................................................................ 15 
3.1.12 VALA LATERAL E CORTA-RIO ............................................................................................................... 15 
3.2 DRENAGEM PARA TRANSPOSIÇÃO DE TALVEGUES ............................................. 17 
3.2.1 CLASSIFICAÇÃO DAS OBRAS DE ARTE CORRENTES ................................................................... 17 
3.2.2 ELEMENTOS CONSTITUINTES DOS BUEIROS ................................................................................. 19 
3.2.3 CÁLCULO DO COMPRIMENTO DOS BUEIROS ................................................................................. 21 
3.3 DRENAGEM PROFUNDA OU SUBTERRÂNEA ............................................................ 25 
3.3.1 ELEMENTOS CONSTITUINTES DOS DRENOS .................................................................................. 25 
3.3.2 CLASSIFICAÇÃO DOS DRENOS ............................................................................................................ 26 
3.3.3 TIPOS DE DRENOS ................................................................................................................................... 27 
3.4 DRENAGEM SUBSUPERFICIAL ...................................................................................... 33 
3.4.1 DRENOS TRANSVERSAIS RASOS ....................................................................................................... 33 
3.4.2 DRENOS LONGITUDINAIS RASOS ....................................................................................................... 33 
3.4.3 BASE DRENANTE ...................................................................................................................................... 33 
3.4.4 DRENOS LATERAIS DA BASE (SANGRAS) ........................................................................................ 33 
4 REFERÊNCIAS BIBLIOGRÁFICAS .................................................................................... 37
DTT/UFPR Dispositivos de Drenagem para Obras Rodoviárias 3 
1 INTRODUÇÃO 
O Projeto Final de Engenharia de uma obra de engenharia, em particular obras 
viárias, é subdividido em alguns estudos e diversos projetos dentre os quais o de 
DRENAGEM que tem uma grande importância nas orientações e definições das demais 
partes do projeto. 
Os maiores problemas de manutenção de uma estrada são oriundos dos efeitos 
negativos da água, que tem por conseqüência: 
• a redução da capacidade de suporte do subleito e demais camadas do 
pavimento, por saturação 
• a variação de volume do subsolo, significativamente no caso de argilas 
expansíveis 
• o surgimento de uma pressão hidrostática (pressão neutra) que diminui a 
pressão efetiva de equilíbrio do solo 
• a erosão de estruturas de corte e de aterro ao longo do traçado 
• e a instabilização de taludes e encostas naturais. 
De uma maneira geral, os estudos hidrológicos, para fins rodoviários e ferroviários, 
têm por objetivo principal proporcionar subsídios e informações necessárias para a 
avaliação adequada do regime pluviométrico da região atravessada pela via em estudo, 
visando estabelecer a influência das condições climáticas sobre o terreno natural, a 
terraplenagem, a pavimentação e sobre a concepção e dimensionamento das estruturas de 
drenagem, bem como sobre o estabelecimento do cronograma físico correspondente às 
etapas construtivas. 
O dimensionamento dos dispositivos de drenagem, quanto à seção de vazão, 
apresenta dois aspectos distintos: o primeiro corresponde aos estudos hidrológicos para a 
fixação do valor da vazão e o segundo, de natureza hidráulica, compreende o 
dimensionamento propriamente dito da obra para conduzir ou permitir o escoamento deste 
volume. 
As diversas estruturas que compõem um projeto de drenagem serão dimensionadas 
pelos métodos e fórmulas já consagrados a serem detalhados na disciplina de Hidrologia, 
cabendo-nos discorrer sob o aspecto qualitativo da drenagem.
DTT/UFPR Dispositivos de Drenagem para Obras Rodoviárias 4 
2 DEFINIÇÃO E CLASSIFICAÇÃO DOS TIPOS DE DRENAGEM 
Drenagem consiste no controle das águas a fim de se evitar danos à estrada 
construída. Efetua-se este controle por meio da interceptação, captação, condução e 
deságüe em local adequado das águas que: 
• existem no subleito; 
• penetrem por infiltração no pavimento; 
• precipitem-se sobre o corpo estradal; 
• cheguem ao corpo estradal provenientes de áreas adjacentes; 
• cheguem através dos talvegues aos aterros. 
O Projeto de Drenagem é desenvolvido em duas fases, sendo a primeira de 
anteprojeto e a segunda de projeto propriamente dito, que se constituirão basicamente em: 
• concepção dos dispositivos de drenagem que comporão o projeto; 
• dimensionamento das estruturas de drenagem; 
• execução de notas de serviço dos diversos dispositivos que compõem o 
projeto de drenagem, onde estejam identificadas as localizações, tipos, 
tamanhos e extensões das obras. 
Sob o ponto de vista econômico, os custos de implantação das estruturas de 
drenagem atingem hoje valores significativos dentro dos orçamentos e são necessárias para 
se garantir boas condições de tráfego e segurança do usuário. 
O projeto de drenagem pode ser subdividido e classificado em: 
DRENAGEM SUPERFICIAL: O sistema de drenagem superficial tem por objetivo a 
captação ou interceptação e remoção das águas precipitadas, sobre as estradas e áreas 
adjacentes, que escoam superficialmente. A água superficial é a água que resta de uma 
chuva após serem deduzidas as perdas por evaporação e por infiltração. As águas 
superficiais devem ser removidas ou conduzidas para fora do corpo estradal, ou para locais 
apropriados de deságüe seguro, para evitar a sua acumulação na estrada, bem como 
visando proporcionar estabilidade aos maciços de terra que constituem a infra-estrutura e 
não causar erosão nos terrenos marginais. O sistema de drenagem superficial se compõe 
dos seguintes dispositivos, os quais serão detalhados na seqüência: 
• valeta de proteção de corte 
• valeta de proteção de aterro 
• sarjeta de corte
DTT/UFPR Dispositivos de Drenagem para Obras Rodoviárias 5 
• sarjeta e meio-fio de aterro 
• sarjeta de canteiro central e de banquetas 
• transposição de segmentos de sarjetas 
• saída e descida d’água em talude 
• dissipador de energia 
• bueiro de greide 
• caixa coletora 
• bacia de captação e vala de derivação 
• vala lateral e corta-rio 
DRENAGEM PARA TRANSPOSIÇÃO DE TALVEGUES: Tem por objetivo permitir a 
passagem das águas que escoam pelo terreno natural, não as interceptando, de um lado 
para outro do corpo estradal projetado. Assim, estes dispositivos de drenagem, isolados ou 
em conjunto, são estruturas projetadas para conduzir as águas dos córregos, bacias e 
açudes interceptados pela estrada. Podem ser separados em dois tipos: 
• Pontes ou Obras de Arte Especiais-OAE 
• Bueiros ou Obras de Arte Correntes-OAC 
Os bueiros utilizados nas rodovias, nosso interesse de estudo, com seus elementos 
constituintes, são classificados quanto: 
• ao tipo de estrutura e forma de seção tubulares de concreto 
• ao número de linhas 
• ao tipo do material 
• a esconsidade 
DRENAGEM PROFUNDA OU SUBTERRÂNEA: O sistema de drenagem profunda objetiva 
interceptar fluxos das águas subterrâneas e rebaixar o lençol freático, em cortes em solo ou 
rocha, captando e escoando as águas, de forma a impedir a deterioração progressiva do 
suporte das camadas dos terraplenos e pavimentos. Os drenos variam conforme seus 
elementos constituintes bem como suas classificações. Como detalhado na seqüência, os 
drenos mais utilizados são dos seguintes tipos: 
• dreno contínuos e descontínuo 
• dreno cego
DTT/UFPR Dispositivos de Drenagem para Obras Rodoviárias 6 
• colchão drenante 
• dreno a céu aberto (valetão) 
• dreno em “espinha de peixe” 
• dreno subhorizontal. 
DRENAGEM SUBSUPERFICIAL, ESTRUTURAL OU DE PAVIMENTO : O sistema de 
drenagem subsuperficial tem por objetivo a rápida e eficiente coleta e condução das águas 
que infiltram-se nas camadas do pavimento. Os drenos de pavimento podem ser 
diferenciados em: 
• transversal raso 
• longitudinal raso 
• base drenante 
• lateral da base (sangra).
DTT/UFPR Dispositivos de Drenagem para Obras Rodoviárias 7 
3 DISPOSITIVOS DE DRENAGEM 
3.1 DRENAGEM SUPERFICIAL 
3.1.1 VALETA DE PROTEÇÃO DE CORTE 
Também denominada de Valeta de Coroamento, consiste em dispositivo destinado a 
interceptar e conduzir as águas precipitadas sobre as áreas adjacentes e que escoam a 
montante dos cortes, visando impedir que estas atinjam o corpo estradal. Podem ser 
revestidas de grama, pedra arrumada, pedra argamassada, concreto, solo-cimento ou o 
próprio solo compactado. Normalmente são construídas paralelamente as cristas dos cortes 
a uma distância mínima de 3,0m da linha de off-sets, com seção transversal trapezoidal ou 
triangular, moldadas “in loco” de forma manual e/ou mecânica. A seguir, apresenta-se a 
representação gráfica de dois exemplos de valeta de proteção de corte revestida em 
concreto e em grama.
DTT/UFPR Dispositivos de Drenagem para Obras Rodoviárias 8 
3.1.2 VALETA DE PROTEÇÃO DE ATERRO 
A semelhança da valeta de corte, esta consiste em dispositivo destinado a interceptar 
e conduzir as águas precipitadas sobre as áreas adjacentes e que escoam a montante dos 
aterros, visando impedir que estas atinjam o corpo estradal (pé do aterro), direcionando-as 
aos bueiros. Podem ser revestidas de grama, pedra arrumada, pedra argamassada, 
concreto, solo-cimento ou o próprio solo compactado. Normalmente são construídas 
paralelamente ao pé do talude de aterro, a uma distância mínima de 1,0m da linha de off-sets, 
com seção transversal trapezoidal ou triangular, moldadas “in loco” de forma manual 
e/ou mecânica. A seguir, representação gráfica de dois exemplos de valeta de proteção de 
aterro revestida em concreto e em grama. 
3.1.3 SARJETA DE CORTE 
As sarjetas de corte são dispositivos de drenagem construídos lateralmente as pistas 
de rolamento, destinados a captar e conduzir longitudinalmente as águas precipitadas sobre 
a pista de rolamento e áreas laterais a rodovia para os bueiros, saídas dos cortes ou 
talvegues naturais. Podem ser revestidas de grama, pedra arrumada, pedra argamassada, 
concreto ou solo-cimento. Normalmente são construídas junto aos acostamentos, com 
seção transversal triangular, semicircular ou trapezoidal, moldadas “in loco” de forma 
manual e/ou mecânica. Representação gráfica a seguir.
DTT/UFPR Dispositivos de Drenagem para Obras Rodoviárias 9 
3.1.4 SARJETA E MEIO-FIO DE ATERRO 
As sarjetas e meio-fios de aterro são dispositivos destinados a conduzir 
longitudinalmente as águas precipitadas sobre a pista de rolamento para os bueiros de 
greide ou saídas d’água, impedindo que escoem pelo talude do aterro, provocando pontos 
de erosão. As sarjetas podem ser revestidas de grama, pedra arrumada, pedra 
argamassada, concreto ou solo-cimento, normalmente construídas em seção transversal 
triangular ou trapezoidal, moldadas “in loco” de forma manual e/ou mecânica, em aterros 
com altura superior a 3m, em interseções e no bordo interno de curvas horizontais. Os meio-fios, 
de diferentes seções transversais, são pré-moldados em concreto e também podem ter 
a função de limitar a área da plataforma, principalmente onde se torna necessária a 
orientação de tráfego, como canteiro central ou interseções, complementando de forma 
importante a função de orientação da drenagem superficial e da segurança da via. Exemplos 
estão representados graficamente a seguir.
DTT/UFPR Dispositivos de Drenagem para Obras Rodoviárias 10 
3.1.5 SARJETA DE CANTEIRO CENTRAL E DE BANQUETA 
As sarjetas de canteiro central são dispositivos destinados a captar e conduzir 
longitudinalmente, entre as pistas opostas de uma rodovia de pista dupla, as águas 
precipitadas sobre as pistas de rolamento e área central da rodovia, para caixas coletoras e 
bueiros de greide. As de banquetas são sarjetas implantadas em taludes de corte ou aterro 
cuja altura requeira o banqueteamento. Podem ser revestidas de grama, pedra arrumada, 
pedra argamassada, concreto ou solo-cimento. Normalmente são construídas com seção 
transversal triangular ou trapezoidal, moldadas “in loco” de forma manual e/ou mecânica. 
Representação gráfica na seqüência. 
3.1.6 TRANSPOSIÇÃO DE SEGMENTOS DE SARJETAS 
São dispositivos destinados a dar acesso a propriedades ou vias laterais 
(secundárias) a rodovia, permitindo a passagem dos veículos sobre sarjetas, sem causar 
danos ao dispositivo ou a interrupção do fluxo canalizado. Distinguem-se dois tipos básicos 
de dispositivos de transposição de segmentos de sarjetas, a saber: 
• tubos de concreto, tipo de encaixe macho e fêmea, envolvidos por berço e 
cobertura de concreto simples; 
• laje de grelha de concreto armado, pré-moldada;
DTT/UFPR Dispositivos de Drenagem para Obras Rodoviárias 11
DTT/UFPR Dispositivos de Drenagem para Obras Rodoviárias 12 
3.1.7 SAÍDA E DESCIDA D’ÁGUA EM TALUDE 
As descidas d’água para taludes de cortes são dispositivos destinados a conduzir 
através dos taludes de cortes as águas de talvegues interceptados pela rodovia, sendo que 
a descarga se faz normalmente em caixas coletoras de bueiros de greide ou, 
excepcionalmente, na própria sarjeta de corte. As descidas d’água em taludes de aterros 
são dispositivos locados nos pontos mais baixos, destinados a conduzir através dos taludes 
de aterros as águas de plataforma coletadas por sarjetas ou meio-fios de aterros e os fluxos 
de bueiros de greide que descarregam no talude de aterro, normalmente são 
complementadas por dissipadores de energia. As descidas d’água podem ser rápidas (lisas) 
ou em degraus. Ambas as descidas são moldadas “in loco”, em concreto simples ou 
armado, pedra argamassada ou em calha metálica corrugada, com seção transversal 
retangular ou trapezoidal. 
As saídas d’água são dispositivos em concreto simples, moldado “in loco”, destinados 
a receber as águas da plataforma coletadas pelas sarjetas e meio-fios, nos extremos de 
comprimentos críticos, conduzindo-as às descidas d’água em taludes de aterros, sem 
quebrar a continuidade do fluxo d’água.
DTT/UFPR Dispositivos de Drenagem para Obras Rodoviárias 13 
3.1.8 DISSIPADOR DE ENERGIA 
Dissipadores de energia são dispositivos que têm a função de reduzir a energia de 
fluxos d’água concentrados por outros dispositivos de drenagem, promovendo a redução de 
velocidade de escoamento, minimizando os efeitos erosivos quando da disposição final junto 
ao terreno natural. Construído “in loco”, em concreto e pedra de mão (0,10 a 0,15cm) 
arrumada, assentada sobre uma caixa escavada no terreno, com as paredes e fundo 
revestidos em concreto, situada a frente e sob a extremidade de outro dispositivo de 
drenagem; na falta de pedra de mão, ou por opção, pode-se executar o concreto denteado. 
Também podem ser associados a descidas d’água em degraus.
DTT/UFPR Dispositivos de Drenagem para Obras Rodoviárias 14 
3.1.9 BUEIRO DE GREIDE 
Consiste numa linha de tubos de concreto, normalmente armado, com diâmetro de 
0,80m, apoiado num berço de concreto magro, quase a superfície da plataforma de 
terraplenagem, com objetivo de propiciar adequadas condições de deságüe das águas 
coletadas por dispositivos de drenagem superficial cuja vazão admissível tenha sido atingida 
ou drenar pontos baixos. São localizados em seções mistas, passagens de corte para 
aterro, pontos mais baixos dos aterros e transposições de pistas quando necessário. 
3.1.10 CAIXA COLETORA 
São dispositivos de concreto simples ou de alvenaria de tijolos, utilizáveis nas 
extremidades dos bueiros de greide para a captação e transferência das águas 
provenientes de sarjetas (caixa coletora de sarjeta) ou em substituição a boca de montante 
de bueiros de grota (caixa coletora de talvegue). 
Os poços de inspeção são caixas destinadas a permitir a conexão de canalizações 
com alinhamentos, dimensões e declividades diferentes que se interceptam em um ponto; 
também são utilizados em segmentos de canalizações muito longos, de modo a facilitar as 
tarefas de manutenção e limpeza.
DTT/UFPR Dispositivos de Drenagem para Obras Rodoviárias 15 
3.1.11 BACIA DE CAPTAÇÃO E VALA DE DERIVAÇÃO 
Bacias de captação são depressões rasas escavadas a montante de bueiros 
visando facilitar e disciplinar a entrada do fluxo d’água nos bueiros. 
Valas de derivação são valas construídas a jusante do bueiro, com objetivo de 
afastar rapidamente as águas que o transpuseram. 
3.1.12 VALA LATERAL E CORTA-RIO 
Valas laterais são valas construídas com o objetivo de intercomunicar pequenas 
bacias e conduzir os respectivos fluxos a um único e principal talvegue. 
Corta-rios são valas de dimensões avantajadas cujo objetivo é desviar pequenos 
cursos d’água impedindo-os de atingir e danificar (erodir) os pés de aterros.
DTT/UFPR Dispositivos de Drenagem para Obras Rodoviárias 16
DTT/UFPR Dispositivos de Drenagem para Obras Rodoviárias 17 
3.2 DRENAGEM PARA TRANSPOSIÇÃO DE TALVEGUES 
Pontes ou obras de arte especiais-OAE, conforme nominadas, são estruturas 
especiais cujos objetivos são de relevante importância, tornando possível a travessia de 
cursos d’água de diferentes proporções, de braço de mar, de grandes depressões ou 
obstáculos de difícil transposição em padrões usuais de construção e de relativamente baixo 
custo financeiro, muitas vezes exercendo a função de dispositivo de drenagem para 
transposição de talvegues. São definidos projetos específicos para cada objetivo, podendo-se 
padronizar soluções e dimensionamentos para casos mais simples e freqüentes quando 
mantidas algumas condições básicas. 
Com aspecto informativo e de maneira superficial e genérica, as OAE podem variar 
quanto a solução técnica melhor apropriada (ponte simples, composta, com apoios, em 
balanço, estaiada, pênsil, levadiça, ...), quanto aos materiais empregados (madeira, pedra, 
concreto armado, concreto protendido, metálicas, mistas,...), quanto a forma de execução 
(moldadas “in loco” ou pré-moldadas), bem como quanto a sua utilização(rodoviária, 
ferroviária, pedestres, ...). As OAE, por suas peculiaridades e complexidades, constituem-se 
em estudo específico a ser abordado academicamente em disciplina igualmente específica. 
Bueiros ou obras de arte correntes-OAC são dispositivos drenantes constituídos 
por linha de escoamento d’água, sobre o terreno natural, tendo todo o aterro sobre si, 
normalmente posicionado transversalmente a plataforma, permitindo a livre passagem 
d’água sob a rodovia. Podem drenar as águas precipitadas fora do corpo estradal e 
acumuladas nos talvegues naturais ou precipitadas sobre a plataforma e taludes de cortes e 
acumuladas em caixas coletoras. Existe uma diversidade bastante grande de OAC e que 
passamos a classificar da forma como segue. 
3.2.1 CLASSIFICAÇÃO DAS OBRAS DE ARTE CORRENTES 
Para melhor detalharmos as OAC, podemos classificá-las segundo o tipo de estrutura 
e forma de seção transversal, quanto ao número de linhas, ao tipo de materiais e quanto a 
esconsidade das diversas disposições que compõem os bueiros, a seguir apresentados. 
A- TIPO DE ESTRUTURA E FORMA DE SEÇÃO TRANSVERSAL 
Bueiro TUBULAR de Concreto: constituído por linha de tubos de concreto armado, 
pré-moldados, de seção transversal circular, com diâmetro variando de 0,80 a 2,00m; 
podem ter encaixe macho e fêmea simples ou de bolsa.
DTT/UFPR Dispositivos de Drenagem para Obras Rodoviárias 18 
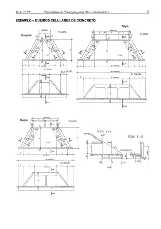
Bueiro CELULAR de Concreto: são dispositivos constituídos por células de concreto 
armado, moldadas “in loco”, normalmente com seção transversal quadrada, com lado 
variando de 1,00 a 3,00m. Permitem grandes vazões. 
Bueiros ESPECIAIS: são constituídos por estruturas de concreto, metálica ou 
alvenaria de pedra ou tijolos, podem ser em forma de arco, ovóide ou quadrada/retangular 
(capeado); podem ter dimensões variadas e aplicações mais específicas. 
B - NÚMERO DE LINHAS 
Bueiro SIMPLES: constituídos por uma única linha de dispositivos de escoamento. 
Bueiro DUPLO ou TRIPLO: constituídos respectivamente por linha dupla e tripla de 
dispositivos de escoamento d’água; não é usual número maior de linhas.
DTT/UFPR Dispositivos de Drenagem para Obras Rodoviárias 19 
C - TIPO DE MATERIAL 
Bueiro de CONCRETO ARMADO 
Bueiro METÁLICO – chapa corrugada ou lisa – “ARMCO” / “Tunnel-Linner” 
Bueiro de ALVENARIA, PEDRA 
Bueiro de MADEIRA (provisório) 
Bueiro de PVC 
D - ESCONSIDADE 
Normal: o eixo do bueiro é ortogonal ao eixo da estrada; facilidade construtiva e 
menor custo em função do menor comprimento. 
Esconso: o eixo do bueiro não é ortogonal ao eixo da estrada, tendo como referência 
de esconsidade o ângulo formado pela normal ao eixo da estrada e o eixo do bueiro; requer 
detalhamento construtivo, gerando um comprimento maior ao bueiro. Os ângulos de 
esconsidade normalmente devem ser múltiplos de 5º até o máximo de 45º. 
3.2.2 ELEMENTOS CONSTITUINTES DOS BUEIROS 
Corpo: estrutura com a função efetiva de dar passagem às águas. 
Berço: constitui a base de assentamento do bueiro; normalmente de concreto. 
Bocas: são os dispositivos de entrada (montante) e saída (jusante) dos bueiros, 
integrando o bueiro ao corpo do aterro. 
Recobrimento: aterro de cobertura ao bueiro, com altura mínima estabelecida em 
função do tipo e dimensão do bueiro. 
Declividade: inclinação longitudinal do bueiro cuja função é forçar o escoamento 
apropriado das águas, evitando velocidades excessivas.
DTT/UFPR Dispositivos de Drenagem para Obras Rodoviárias 20
DTT/UFPR Dispositivos de Drenagem para Obras Rodoviárias 21 
3.2.3 CÁLCULO DO COMPRIMENTO DOS BUEIROS 
O cálculo do comprimento dos bueiros deve levar em consideração a largura da 
plataforma final de terraplenagem, a altura do aterro associada ao talude de aterro e a 
esconsidade. O comprimento final (L) será a divisão da soma da largura da plataforma (p) 
com os comprimentos correspondentes as projeções horizontais dos taludes de aterro 
(saias) a montante (pm) e jusante (pj) pelo coseno do ângulo de esconsidade (cos α). 
Então L = ( p + pm + pj ) ÷ cos α 
onde pm = 1,5 * hm 
pj = 1,5 * hj
DTT/UFPR Dispositivos de Drenagem para Obras Rodoviárias 22 
EXEMPLO – BUEIROS TUBULARES DE CONCRETO – Dimensões e quantidades
DTT/UFPR Dispositivos de Drenagem para Obras Rodoviárias 23 
EXEMPLO – BUEIROS CELULARES DE CONCRETO
DTT/UFPR Dispositivos de Drenagem para Obras Rodoviárias 24 
EXEMPLO – POSICIONAMENTO DE BUEIRO DE GREIDE E DE TALVEGUE
DTT/UFPR Dispositivos de Drenagem para Obras Rodoviárias 25 
3.3 DRENAGEM PROFUNDA OU SUBTERRÂNEA 
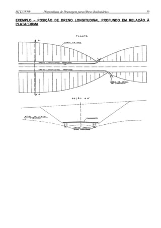
Os drenos profundos, dispostos longitudinalmente ao corpo estradal, são dispositivos 
utilizados para interceptar fluxos das águas subterrâneas e rebaixar o lençol freático, em 
cortes em solo ou rocha, captando e escoando as águas, de maneira a evitar que a ação 
das águas subterrâneas possa afetar a resistência do material do subleito e do pavimento, 
prejudicando o desempenho pretendido. 
3.3.1 ELEMENTOS CONSTITUINTES DOS DRENOS 
Os drenos variam em função de seus elementos constituintes bem como são 
associados a outros elementos complementares, quais sejam: 
VALA: vala escavada mecanicamente (retro-escavadeira), no sentido longitudinal do 
corpo estradal, com dimenões de 0,50m de largura por 1,50m de profundidade, podendo 
sofrer variações; deve-se manter uma declividade longitudinal mínima de 1% e, por 
imposição construtiva, deve ser escavado no sentido da jusante para montante. 
MATERIAL FILTRANTE: com o objetivo de não deixar que outros materiais além da 
água tenham acesso ao sistema de drenagem, reduzindo ou perdendo toda eficiência 
necessária, é utilizado como material filtrante a areia natural, isenta de impurezas orgânicas 
e torrões de argila. A granulometria do material filtrante deverá ser verificada segundo 
critérios de dimensionamento de filtros, para que se ateste a sua adequação face aos solos 
envolventes, tendo em vista os aspectos de colmatação (preenchimento dos vazios por 
material carreado pela água) e permeabilidade. Caso os materiais naturais disponíveis não 
sejam perfeitamente adequados, admite-se a correção com outros materiais, naturais ou 
artificiais, ou o emprego de areia artificial resultante da britagem de rocha sã; ultimamente 
esta sendo bastante difundido o uso de geotêxtil ou manta sintética. 
MATERIAL DRENANTE: como material drenante poderão ser utilizados produtos 
resultantes da britagem e classificação da rocha sã, areias grossas e pedregulhos naturais 
ou seixos rolados, desde que isentos de impurezas orgânicas e torrões de argila. A 
granulometria do material drenante deverá ser verificada ou projetada segundo critérios de 
dimensionamento de filtros, para que sejam atendidas as seguintes condições: 
• o material drenante não seja colmatado pelo solo envolvente e material filtrante 
• a permeabilidade do material drenante seja satisfatória 
• os fragmentos do material drenante não sejam pequenos a ponto de bloquear 
ou se infiltrar no interior dos tubos de concreto perfurados, quando estes forem 
previstos.
DTT/UFPR Dispositivos de Drenagem para Obras Rodoviárias 26 
TUBOS: tem aplicação opcional em função das particulares do projeto; com diâmetro 
de 0,20m e proporcionando grande capacidade de vazão ao dreno, os tubos podem ser 
constituídos de diferentes formas a saber: 
• de concreto simples perfurado 
• de concreto poroso, onde a participação de agregado miúdo é mínima, sendo 
que sua permeabilidade deve assemelhar-se à do agregado graúdo que entra 
na composição do concreto utilizado 
• cerâmico ou plástico (PVC) perfurado ou ranhurado. 
SELO SUPERIOR: elemento opcional, cujo objetivo é impedir o acesso ao dreno de 
águas superficiais; normalmente é empregada uma camada de argila. 
BOCA DE SAÍDA: dispositivo complementar, executado na extremidade do dreno 
para proteger a saída d’água contra elementos que possam prejudicá-la (vegetação, etc.); é 
executada de concreto simples. Nas saídas dos cortes, os drenos devem ser defletidos em 
cerca de 45º, com raio na ordem de 5m, prolongando-se no mínimo 1m além do “off-set” do 
aterro anexo. 
3.3.2 CLASSIFICAÇÃO DOS DRENOS 
Os drenos podem ser também classificados quanto: 
1 - aos locais para instalação : 
• cortes em solo: onde as sondagens detectaram água próxima ao greide 
projetado 
• cortes em rochas: onde há diáclises por onde a água pode percolar. 
2 - ao preenchimento da cava (vala): 
• cego ou sem tubo: pequena vazão (“francês”) 
• com tubo: grande vazão 
3 - a permeabilidade da camada superior: 
• selados: impermeáveis a águas de superfície 
• abertos: recebem águas por cima
DTT/UFPR Dispositivos de Drenagem para Obras Rodoviárias 27 
4 - a granulometria (material de enchimento): 
• contínuos: somente um material de enchimento 
• descontínuos: material filtrante e material drenante 
3.3.3 TIPOS DE DRENOS 
Em acordância aos elementos apresentados, os drenos usualmente aplicados nos 
projetos viários são dos seguintes tipos descritos e/ou representados graficamente, de forma 
combinada ou não, como segue: 
1- DRENO CONTÍNUO E DESCONTÍNUO: é função do material de enchimento 
(filtrante e drenante) definido visando atender as características do terreno e de 
disponibilidade de materiais. 
2- DRENO CEGO: dreno executado sem tubos, cuja função é executada pelo 
material drenante. 
3- COLCHÃO DRENANTE: ou camada drenante, consiste numa camada de material 
drenante preenchendo o rebaixo de greide executado nos cortes em rocha visando impedir 
que a água percolada através de diáclises atinja as camadas inferiores do pavimento.
DTT/UFPR Dispositivos de Drenagem para Obras Rodoviárias 28 
EXEMPLO – DRENOS LONGITUDINAIS PROFUNDOS PARA CORTES EM SOLOS
DTT/UFPR Dispositivos de Drenagem para Obras Rodoviárias 29 
EXEMPLO – DRENOS LONGITUDINAIS PROFUNDOS – Detalhes Complementares
DTT/UFPR Dispositivos de Drenagem para Obras Rodoviárias 30 
EXEMPLO – POSIÇÃO DE DRENO LONGITUDINAL PROFUNDO EM RELAÇÃO Ã 
PLATAFORMA
DTT/UFPR Dispositivos de Drenagem para Obras Rodoviárias 31 
4 - DRENO A CÉU ABERTO: também chamado de valetão lateral, é fruto do alargamento 
lateral da plataforma que passa a atuar como dreno só que a céu aberto, dispensando 
drenos profundos convencionais. 
5 - DRENO EM “ESPINHA-DE-PEIXE”: é um dreno sem tubo, de pequena profundidade, 
com a configuração de uma espinha de peixe, ou seja, uma linha principal alimentada por 
diversas linhas secundárias. Bastante utilizados em grandes áreas pavimentadas, em cortes 
com nascentes d’água e também sob aterros com nível freático muito elevado. 
6 - DRENOS SUB-HORIZONTAIS: destinados a drenar maciços (taludes de corte/aterro) ou 
encostas naturais, visando reduzir a pressão neutra, evitando assim que as condições de 
saturação vigentes comprometam a estabilidade dos maciços; são empregados tubos de 
PVC perfurados ou ranhurados, com diâmetro de 50mm, cravados nos taludes após 
perfuração com equipamento apropriado. 
São dispositivos complementares a outros dispositivos; o objetivo é dar estabilidade ao 
maciço. Por dificuldade de operação dos equipamentos de perfuração, a primeira linha de 
drenos é implantada 1,00m acima da plataforma de terraplenagem. O número de drenos e 
comprimentos dependem de estudos hidrológicos e geotécnicos.
DTT/UFPR Dispositivos de Drenagem para Obras Rodoviárias 32 
EXEMPLO – DRENOS SUB-HORIZONTAIS – Detalhes Complementares
DTT/UFPR Dispositivos de Drenagem para Obras Rodoviárias 33 
3.4 DRENAGEM SUBSUPERFICIAL 
Constituem dispositivos que têm a função de drenar águas superficiais infiltradas no 
pavimento, podendo ser executados transversal ou longitudinalmente ao eixo da estrada. 
3.4.1 DRENOS TRANSVERSAIS RASOS 
Têm por objetivo drenar águas que se infiltram no pavimento e percolam 
longitudinalmente através da superfície de contato pavimento e terraplanagem. São 
aplicados nas saídas de corte e nos pontos baixos de aterros. 
3.4.2 DRENOS LONGITUDINAIS RASOS 
Têm como função coletar e conduzir longitudinalmente águas infiltradas no 
pavimento, em seções em que há confinamento lateral do pavimento por outros dispositivos 
(sarjetas, etc.). 
3.4.3 BASE DRENANTE 
Consiste numa camada betuminosa de granulometria aberta, muito permeável, 
posicionada abaixo do revestimento e estendida até o bordo dos acostamentos, propiciando 
condição de livre drenagem às águas de infiltração no pavimento. Os materiais empregados 
são pré-misturados abertos e macadame betuminoso. 
3.4.4 DRENOS LATERAIS DA BASE (SANGRAS) 
Têm por objetivo propiciar condições de drenagem, a intervalos definidos, a uma base 
drenante que é confinada lateralmente por acostamentos impermeáveis. Também, os 
materiais utilizados são pré-misturados abertos ou macadame betuminoso.
DTT/UFPR Dispositivos de Drenagem para Obras Rodoviárias 34 
EXEMPLO – DRENOS SUB-SUPERFICIAIS – Detalhes Complementares
DTT/UFPR Dispositivos de Drenagem para Obras Rodoviárias 35 
EXEMPLO – LOCAIS PARA IMPLANTAÇÃO DE DRENOS LONGITUDINAIS E 
TRANSVERSAIS EM CORTES E ATERROS
DTT/UFPR Dispositivos de Drenagem para Obras Rodoviárias 36 
EXEMPLO – ESQUEMA GERAL DE DRENAGEM
DTT/UFPR Dispositivos de Drenagem para Obras Rodoviárias 37 
4 REFERÊNCIAS BIBLIOGRÁFICAS 
ÁLBUM DE PROJETO-TIPO DE DISPOSITIVOS DE DRENAGEM - MT / Departamento 
Nacional de Estradas de Rodagem - 1988 
ÁLBUM DE PROJETO-TIPO DE DRENAGEM, OBRAS DE ARTE CORRENTE, 
PONTILHÕES E OBRAS COMPLEMENTARES - SETR / Departamento de Estradas 
de Rodagem do Estado do Paraná - 1989 
ESPECIFICAÇÕES GERAIS PARA OBRAS RODOVIÁRIAS – Volume I/IV - MT / 
Departamento Nacional de Estradas de Rodagem - 2000 
APOSTILA DE TRANSPORTES: Drenagem / Sinalização / Obras Complementares – Djalma 
Martins Pereira / Eduardo Ratton / Gilza Fernandes Blasi / Wilson Küster Filho - 
Diretório Acadêmico do Setor de Tecnologia da UFPR – 1997 
DRENAGEM SUPERFICIAL E SUBTERRÂNEA DE ESTRADAS – R. Michelin 
INSTRUÇÕES PARA DERNAGEM DE RODOVIAS – Tomo I e II - MT / Departamento 
Nacional de Estradas de Rodagem. 
DRAINAGE OF PAVEMENTS STRUCTURES – Asphalt Institute 
DRAINAGE OF HIGHWAY AND AIRFIELD PAVEMENTS – Cedergren (traduzido) 
MANUAL DE IMPLANTAÇÃO BÁSICA – MT / Departamento Nacional de Estradas de 
Rodagem - 1975 
DRENAGEM DE RODOVIAS E FERROVIAS – Antonio Lopes Pereira – Ao Livro Técnico 
Ltda - 1959

Apostila drenagem 2009

  • 1.
    UNIVERSIDADE FEDERAL DOPARANÁ SETOR DE TECNOLOGIA DEPARTAMENTO DE TRANSPORTES DISPOSITIVOS DE DRENAGEM PARA OBRAS RODOVIÁRIAS CURSO: ENGENHARIA CIVIL DISCIPLINA: TT-048 – INFRAESTRUTURA VIÁRIA PROFESSORES: Djalma Martins Pereira Eduardo Ratton Gilza Fernandes Blasi Márcia de Andrade Pereira Wilson Küster Filho M MARÇO/2009
  • 2.
    DTT/UFPR Dispositivos deDrenagem para Obras Rodoviárias 2 Sumário 1 INTRODUÇÃO ........................................................................................................................... 3 2 DEFINIÇÃO E CLASSIFICAÇÃO DOS TIPOS DE DRENAGEM ..................................... 4 3 DISPOSITIVOS DE DRENAGEM ........................................................................................... 7 3.1 DRENAGEM SUPERFICIAL ................................................................................................. 7 3.1.1 VALETA DE PROTEÇÃO DE CORTE ...................................................................................................... 7 3.1.2 VALETA DE PROTEÇÃO DE ATERRO .................................................................................................... 8 3.1.3 SARJETA DE CORTE .................................................................................................................................. 8 3.1.4 SARJETA E MEIO-FIO DE ATERRO ........................................................................................................ 9 3.1.5 SARJETA DE CANTEIRO CENTRAL E DE BANQUETA .................................................................... 10 3.1.6 TRANSPOSIÇÃO DE SEGMENTOS DE SARJETAS .......................................................................... 10 3.1.7 SAÍDA E DESCIDA D’ÁGUA EM TALUDE ............................................................................................. 12 3.1.8 DISSIPADOR DE ENERGIA ..................................................................................................................... 13 3.1.9 BUEIRO DE GREIDE ................................................................................................................................. 14 3.1.10 CAIXA COLETORA .................................................................................................................................... 14 3.1.11 BACIA DE CAPTAÇÃO E VALA DE DERIVAÇÃO ................................................................................ 15 3.1.12 VALA LATERAL E CORTA-RIO ............................................................................................................... 15 3.2 DRENAGEM PARA TRANSPOSIÇÃO DE TALVEGUES ............................................. 17 3.2.1 CLASSIFICAÇÃO DAS OBRAS DE ARTE CORRENTES ................................................................... 17 3.2.2 ELEMENTOS CONSTITUINTES DOS BUEIROS ................................................................................. 19 3.2.3 CÁLCULO DO COMPRIMENTO DOS BUEIROS ................................................................................. 21 3.3 DRENAGEM PROFUNDA OU SUBTERRÂNEA ............................................................ 25 3.3.1 ELEMENTOS CONSTITUINTES DOS DRENOS .................................................................................. 25 3.3.2 CLASSIFICAÇÃO DOS DRENOS ............................................................................................................ 26 3.3.3 TIPOS DE DRENOS ................................................................................................................................... 27 3.4 DRENAGEM SUBSUPERFICIAL ...................................................................................... 33 3.4.1 DRENOS TRANSVERSAIS RASOS ....................................................................................................... 33 3.4.2 DRENOS LONGITUDINAIS RASOS ....................................................................................................... 33 3.4.3 BASE DRENANTE ...................................................................................................................................... 33 3.4.4 DRENOS LATERAIS DA BASE (SANGRAS) ........................................................................................ 33 4 REFERÊNCIAS BIBLIOGRÁFICAS .................................................................................... 37
  • 3.
    DTT/UFPR Dispositivos deDrenagem para Obras Rodoviárias 3 1 INTRODUÇÃO O Projeto Final de Engenharia de uma obra de engenharia, em particular obras viárias, é subdividido em alguns estudos e diversos projetos dentre os quais o de DRENAGEM que tem uma grande importância nas orientações e definições das demais partes do projeto. Os maiores problemas de manutenção de uma estrada são oriundos dos efeitos negativos da água, que tem por conseqüência: • a redução da capacidade de suporte do subleito e demais camadas do pavimento, por saturação • a variação de volume do subsolo, significativamente no caso de argilas expansíveis • o surgimento de uma pressão hidrostática (pressão neutra) que diminui a pressão efetiva de equilíbrio do solo • a erosão de estruturas de corte e de aterro ao longo do traçado • e a instabilização de taludes e encostas naturais. De uma maneira geral, os estudos hidrológicos, para fins rodoviários e ferroviários, têm por objetivo principal proporcionar subsídios e informações necessárias para a avaliação adequada do regime pluviométrico da região atravessada pela via em estudo, visando estabelecer a influência das condições climáticas sobre o terreno natural, a terraplenagem, a pavimentação e sobre a concepção e dimensionamento das estruturas de drenagem, bem como sobre o estabelecimento do cronograma físico correspondente às etapas construtivas. O dimensionamento dos dispositivos de drenagem, quanto à seção de vazão, apresenta dois aspectos distintos: o primeiro corresponde aos estudos hidrológicos para a fixação do valor da vazão e o segundo, de natureza hidráulica, compreende o dimensionamento propriamente dito da obra para conduzir ou permitir o escoamento deste volume. As diversas estruturas que compõem um projeto de drenagem serão dimensionadas pelos métodos e fórmulas já consagrados a serem detalhados na disciplina de Hidrologia, cabendo-nos discorrer sob o aspecto qualitativo da drenagem.
  • 4.
    DTT/UFPR Dispositivos deDrenagem para Obras Rodoviárias 4 2 DEFINIÇÃO E CLASSIFICAÇÃO DOS TIPOS DE DRENAGEM Drenagem consiste no controle das águas a fim de se evitar danos à estrada construída. Efetua-se este controle por meio da interceptação, captação, condução e deságüe em local adequado das águas que: • existem no subleito; • penetrem por infiltração no pavimento; • precipitem-se sobre o corpo estradal; • cheguem ao corpo estradal provenientes de áreas adjacentes; • cheguem através dos talvegues aos aterros. O Projeto de Drenagem é desenvolvido em duas fases, sendo a primeira de anteprojeto e a segunda de projeto propriamente dito, que se constituirão basicamente em: • concepção dos dispositivos de drenagem que comporão o projeto; • dimensionamento das estruturas de drenagem; • execução de notas de serviço dos diversos dispositivos que compõem o projeto de drenagem, onde estejam identificadas as localizações, tipos, tamanhos e extensões das obras. Sob o ponto de vista econômico, os custos de implantação das estruturas de drenagem atingem hoje valores significativos dentro dos orçamentos e são necessárias para se garantir boas condições de tráfego e segurança do usuário. O projeto de drenagem pode ser subdividido e classificado em: DRENAGEM SUPERFICIAL: O sistema de drenagem superficial tem por objetivo a captação ou interceptação e remoção das águas precipitadas, sobre as estradas e áreas adjacentes, que escoam superficialmente. A água superficial é a água que resta de uma chuva após serem deduzidas as perdas por evaporação e por infiltração. As águas superficiais devem ser removidas ou conduzidas para fora do corpo estradal, ou para locais apropriados de deságüe seguro, para evitar a sua acumulação na estrada, bem como visando proporcionar estabilidade aos maciços de terra que constituem a infra-estrutura e não causar erosão nos terrenos marginais. O sistema de drenagem superficial se compõe dos seguintes dispositivos, os quais serão detalhados na seqüência: • valeta de proteção de corte • valeta de proteção de aterro • sarjeta de corte
  • 5.
    DTT/UFPR Dispositivos deDrenagem para Obras Rodoviárias 5 • sarjeta e meio-fio de aterro • sarjeta de canteiro central e de banquetas • transposição de segmentos de sarjetas • saída e descida d’água em talude • dissipador de energia • bueiro de greide • caixa coletora • bacia de captação e vala de derivação • vala lateral e corta-rio DRENAGEM PARA TRANSPOSIÇÃO DE TALVEGUES: Tem por objetivo permitir a passagem das águas que escoam pelo terreno natural, não as interceptando, de um lado para outro do corpo estradal projetado. Assim, estes dispositivos de drenagem, isolados ou em conjunto, são estruturas projetadas para conduzir as águas dos córregos, bacias e açudes interceptados pela estrada. Podem ser separados em dois tipos: • Pontes ou Obras de Arte Especiais-OAE • Bueiros ou Obras de Arte Correntes-OAC Os bueiros utilizados nas rodovias, nosso interesse de estudo, com seus elementos constituintes, são classificados quanto: • ao tipo de estrutura e forma de seção tubulares de concreto • ao número de linhas • ao tipo do material • a esconsidade DRENAGEM PROFUNDA OU SUBTERRÂNEA: O sistema de drenagem profunda objetiva interceptar fluxos das águas subterrâneas e rebaixar o lençol freático, em cortes em solo ou rocha, captando e escoando as águas, de forma a impedir a deterioração progressiva do suporte das camadas dos terraplenos e pavimentos. Os drenos variam conforme seus elementos constituintes bem como suas classificações. Como detalhado na seqüência, os drenos mais utilizados são dos seguintes tipos: • dreno contínuos e descontínuo • dreno cego
  • 6.
    DTT/UFPR Dispositivos deDrenagem para Obras Rodoviárias 6 • colchão drenante • dreno a céu aberto (valetão) • dreno em “espinha de peixe” • dreno subhorizontal. DRENAGEM SUBSUPERFICIAL, ESTRUTURAL OU DE PAVIMENTO : O sistema de drenagem subsuperficial tem por objetivo a rápida e eficiente coleta e condução das águas que infiltram-se nas camadas do pavimento. Os drenos de pavimento podem ser diferenciados em: • transversal raso • longitudinal raso • base drenante • lateral da base (sangra).
  • 7.
    DTT/UFPR Dispositivos deDrenagem para Obras Rodoviárias 7 3 DISPOSITIVOS DE DRENAGEM 3.1 DRENAGEM SUPERFICIAL 3.1.1 VALETA DE PROTEÇÃO DE CORTE Também denominada de Valeta de Coroamento, consiste em dispositivo destinado a interceptar e conduzir as águas precipitadas sobre as áreas adjacentes e que escoam a montante dos cortes, visando impedir que estas atinjam o corpo estradal. Podem ser revestidas de grama, pedra arrumada, pedra argamassada, concreto, solo-cimento ou o próprio solo compactado. Normalmente são construídas paralelamente as cristas dos cortes a uma distância mínima de 3,0m da linha de off-sets, com seção transversal trapezoidal ou triangular, moldadas “in loco” de forma manual e/ou mecânica. A seguir, apresenta-se a representação gráfica de dois exemplos de valeta de proteção de corte revestida em concreto e em grama.
  • 8.
    DTT/UFPR Dispositivos deDrenagem para Obras Rodoviárias 8 3.1.2 VALETA DE PROTEÇÃO DE ATERRO A semelhança da valeta de corte, esta consiste em dispositivo destinado a interceptar e conduzir as águas precipitadas sobre as áreas adjacentes e que escoam a montante dos aterros, visando impedir que estas atinjam o corpo estradal (pé do aterro), direcionando-as aos bueiros. Podem ser revestidas de grama, pedra arrumada, pedra argamassada, concreto, solo-cimento ou o próprio solo compactado. Normalmente são construídas paralelamente ao pé do talude de aterro, a uma distância mínima de 1,0m da linha de off-sets, com seção transversal trapezoidal ou triangular, moldadas “in loco” de forma manual e/ou mecânica. A seguir, representação gráfica de dois exemplos de valeta de proteção de aterro revestida em concreto e em grama. 3.1.3 SARJETA DE CORTE As sarjetas de corte são dispositivos de drenagem construídos lateralmente as pistas de rolamento, destinados a captar e conduzir longitudinalmente as águas precipitadas sobre a pista de rolamento e áreas laterais a rodovia para os bueiros, saídas dos cortes ou talvegues naturais. Podem ser revestidas de grama, pedra arrumada, pedra argamassada, concreto ou solo-cimento. Normalmente são construídas junto aos acostamentos, com seção transversal triangular, semicircular ou trapezoidal, moldadas “in loco” de forma manual e/ou mecânica. Representação gráfica a seguir.
  • 9.
    DTT/UFPR Dispositivos deDrenagem para Obras Rodoviárias 9 3.1.4 SARJETA E MEIO-FIO DE ATERRO As sarjetas e meio-fios de aterro são dispositivos destinados a conduzir longitudinalmente as águas precipitadas sobre a pista de rolamento para os bueiros de greide ou saídas d’água, impedindo que escoem pelo talude do aterro, provocando pontos de erosão. As sarjetas podem ser revestidas de grama, pedra arrumada, pedra argamassada, concreto ou solo-cimento, normalmente construídas em seção transversal triangular ou trapezoidal, moldadas “in loco” de forma manual e/ou mecânica, em aterros com altura superior a 3m, em interseções e no bordo interno de curvas horizontais. Os meio-fios, de diferentes seções transversais, são pré-moldados em concreto e também podem ter a função de limitar a área da plataforma, principalmente onde se torna necessária a orientação de tráfego, como canteiro central ou interseções, complementando de forma importante a função de orientação da drenagem superficial e da segurança da via. Exemplos estão representados graficamente a seguir.
  • 10.
    DTT/UFPR Dispositivos deDrenagem para Obras Rodoviárias 10 3.1.5 SARJETA DE CANTEIRO CENTRAL E DE BANQUETA As sarjetas de canteiro central são dispositivos destinados a captar e conduzir longitudinalmente, entre as pistas opostas de uma rodovia de pista dupla, as águas precipitadas sobre as pistas de rolamento e área central da rodovia, para caixas coletoras e bueiros de greide. As de banquetas são sarjetas implantadas em taludes de corte ou aterro cuja altura requeira o banqueteamento. Podem ser revestidas de grama, pedra arrumada, pedra argamassada, concreto ou solo-cimento. Normalmente são construídas com seção transversal triangular ou trapezoidal, moldadas “in loco” de forma manual e/ou mecânica. Representação gráfica na seqüência. 3.1.6 TRANSPOSIÇÃO DE SEGMENTOS DE SARJETAS São dispositivos destinados a dar acesso a propriedades ou vias laterais (secundárias) a rodovia, permitindo a passagem dos veículos sobre sarjetas, sem causar danos ao dispositivo ou a interrupção do fluxo canalizado. Distinguem-se dois tipos básicos de dispositivos de transposição de segmentos de sarjetas, a saber: • tubos de concreto, tipo de encaixe macho e fêmea, envolvidos por berço e cobertura de concreto simples; • laje de grelha de concreto armado, pré-moldada;
  • 11.
    DTT/UFPR Dispositivos deDrenagem para Obras Rodoviárias 11
  • 12.
    DTT/UFPR Dispositivos deDrenagem para Obras Rodoviárias 12 3.1.7 SAÍDA E DESCIDA D’ÁGUA EM TALUDE As descidas d’água para taludes de cortes são dispositivos destinados a conduzir através dos taludes de cortes as águas de talvegues interceptados pela rodovia, sendo que a descarga se faz normalmente em caixas coletoras de bueiros de greide ou, excepcionalmente, na própria sarjeta de corte. As descidas d’água em taludes de aterros são dispositivos locados nos pontos mais baixos, destinados a conduzir através dos taludes de aterros as águas de plataforma coletadas por sarjetas ou meio-fios de aterros e os fluxos de bueiros de greide que descarregam no talude de aterro, normalmente são complementadas por dissipadores de energia. As descidas d’água podem ser rápidas (lisas) ou em degraus. Ambas as descidas são moldadas “in loco”, em concreto simples ou armado, pedra argamassada ou em calha metálica corrugada, com seção transversal retangular ou trapezoidal. As saídas d’água são dispositivos em concreto simples, moldado “in loco”, destinados a receber as águas da plataforma coletadas pelas sarjetas e meio-fios, nos extremos de comprimentos críticos, conduzindo-as às descidas d’água em taludes de aterros, sem quebrar a continuidade do fluxo d’água.
  • 13.
    DTT/UFPR Dispositivos deDrenagem para Obras Rodoviárias 13 3.1.8 DISSIPADOR DE ENERGIA Dissipadores de energia são dispositivos que têm a função de reduzir a energia de fluxos d’água concentrados por outros dispositivos de drenagem, promovendo a redução de velocidade de escoamento, minimizando os efeitos erosivos quando da disposição final junto ao terreno natural. Construído “in loco”, em concreto e pedra de mão (0,10 a 0,15cm) arrumada, assentada sobre uma caixa escavada no terreno, com as paredes e fundo revestidos em concreto, situada a frente e sob a extremidade de outro dispositivo de drenagem; na falta de pedra de mão, ou por opção, pode-se executar o concreto denteado. Também podem ser associados a descidas d’água em degraus.
  • 14.
    DTT/UFPR Dispositivos deDrenagem para Obras Rodoviárias 14 3.1.9 BUEIRO DE GREIDE Consiste numa linha de tubos de concreto, normalmente armado, com diâmetro de 0,80m, apoiado num berço de concreto magro, quase a superfície da plataforma de terraplenagem, com objetivo de propiciar adequadas condições de deságüe das águas coletadas por dispositivos de drenagem superficial cuja vazão admissível tenha sido atingida ou drenar pontos baixos. São localizados em seções mistas, passagens de corte para aterro, pontos mais baixos dos aterros e transposições de pistas quando necessário. 3.1.10 CAIXA COLETORA São dispositivos de concreto simples ou de alvenaria de tijolos, utilizáveis nas extremidades dos bueiros de greide para a captação e transferência das águas provenientes de sarjetas (caixa coletora de sarjeta) ou em substituição a boca de montante de bueiros de grota (caixa coletora de talvegue). Os poços de inspeção são caixas destinadas a permitir a conexão de canalizações com alinhamentos, dimensões e declividades diferentes que se interceptam em um ponto; também são utilizados em segmentos de canalizações muito longos, de modo a facilitar as tarefas de manutenção e limpeza.
  • 15.
    DTT/UFPR Dispositivos deDrenagem para Obras Rodoviárias 15 3.1.11 BACIA DE CAPTAÇÃO E VALA DE DERIVAÇÃO Bacias de captação são depressões rasas escavadas a montante de bueiros visando facilitar e disciplinar a entrada do fluxo d’água nos bueiros. Valas de derivação são valas construídas a jusante do bueiro, com objetivo de afastar rapidamente as águas que o transpuseram. 3.1.12 VALA LATERAL E CORTA-RIO Valas laterais são valas construídas com o objetivo de intercomunicar pequenas bacias e conduzir os respectivos fluxos a um único e principal talvegue. Corta-rios são valas de dimensões avantajadas cujo objetivo é desviar pequenos cursos d’água impedindo-os de atingir e danificar (erodir) os pés de aterros.
  • 16.
    DTT/UFPR Dispositivos deDrenagem para Obras Rodoviárias 16
  • 17.
    DTT/UFPR Dispositivos deDrenagem para Obras Rodoviárias 17 3.2 DRENAGEM PARA TRANSPOSIÇÃO DE TALVEGUES Pontes ou obras de arte especiais-OAE, conforme nominadas, são estruturas especiais cujos objetivos são de relevante importância, tornando possível a travessia de cursos d’água de diferentes proporções, de braço de mar, de grandes depressões ou obstáculos de difícil transposição em padrões usuais de construção e de relativamente baixo custo financeiro, muitas vezes exercendo a função de dispositivo de drenagem para transposição de talvegues. São definidos projetos específicos para cada objetivo, podendo-se padronizar soluções e dimensionamentos para casos mais simples e freqüentes quando mantidas algumas condições básicas. Com aspecto informativo e de maneira superficial e genérica, as OAE podem variar quanto a solução técnica melhor apropriada (ponte simples, composta, com apoios, em balanço, estaiada, pênsil, levadiça, ...), quanto aos materiais empregados (madeira, pedra, concreto armado, concreto protendido, metálicas, mistas,...), quanto a forma de execução (moldadas “in loco” ou pré-moldadas), bem como quanto a sua utilização(rodoviária, ferroviária, pedestres, ...). As OAE, por suas peculiaridades e complexidades, constituem-se em estudo específico a ser abordado academicamente em disciplina igualmente específica. Bueiros ou obras de arte correntes-OAC são dispositivos drenantes constituídos por linha de escoamento d’água, sobre o terreno natural, tendo todo o aterro sobre si, normalmente posicionado transversalmente a plataforma, permitindo a livre passagem d’água sob a rodovia. Podem drenar as águas precipitadas fora do corpo estradal e acumuladas nos talvegues naturais ou precipitadas sobre a plataforma e taludes de cortes e acumuladas em caixas coletoras. Existe uma diversidade bastante grande de OAC e que passamos a classificar da forma como segue. 3.2.1 CLASSIFICAÇÃO DAS OBRAS DE ARTE CORRENTES Para melhor detalharmos as OAC, podemos classificá-las segundo o tipo de estrutura e forma de seção transversal, quanto ao número de linhas, ao tipo de materiais e quanto a esconsidade das diversas disposições que compõem os bueiros, a seguir apresentados. A- TIPO DE ESTRUTURA E FORMA DE SEÇÃO TRANSVERSAL Bueiro TUBULAR de Concreto: constituído por linha de tubos de concreto armado, pré-moldados, de seção transversal circular, com diâmetro variando de 0,80 a 2,00m; podem ter encaixe macho e fêmea simples ou de bolsa.
  • 18.
    DTT/UFPR Dispositivos deDrenagem para Obras Rodoviárias 18 Bueiro CELULAR de Concreto: são dispositivos constituídos por células de concreto armado, moldadas “in loco”, normalmente com seção transversal quadrada, com lado variando de 1,00 a 3,00m. Permitem grandes vazões. Bueiros ESPECIAIS: são constituídos por estruturas de concreto, metálica ou alvenaria de pedra ou tijolos, podem ser em forma de arco, ovóide ou quadrada/retangular (capeado); podem ter dimensões variadas e aplicações mais específicas. B - NÚMERO DE LINHAS Bueiro SIMPLES: constituídos por uma única linha de dispositivos de escoamento. Bueiro DUPLO ou TRIPLO: constituídos respectivamente por linha dupla e tripla de dispositivos de escoamento d’água; não é usual número maior de linhas.
  • 19.
    DTT/UFPR Dispositivos deDrenagem para Obras Rodoviárias 19 C - TIPO DE MATERIAL Bueiro de CONCRETO ARMADO Bueiro METÁLICO – chapa corrugada ou lisa – “ARMCO” / “Tunnel-Linner” Bueiro de ALVENARIA, PEDRA Bueiro de MADEIRA (provisório) Bueiro de PVC D - ESCONSIDADE Normal: o eixo do bueiro é ortogonal ao eixo da estrada; facilidade construtiva e menor custo em função do menor comprimento. Esconso: o eixo do bueiro não é ortogonal ao eixo da estrada, tendo como referência de esconsidade o ângulo formado pela normal ao eixo da estrada e o eixo do bueiro; requer detalhamento construtivo, gerando um comprimento maior ao bueiro. Os ângulos de esconsidade normalmente devem ser múltiplos de 5º até o máximo de 45º. 3.2.2 ELEMENTOS CONSTITUINTES DOS BUEIROS Corpo: estrutura com a função efetiva de dar passagem às águas. Berço: constitui a base de assentamento do bueiro; normalmente de concreto. Bocas: são os dispositivos de entrada (montante) e saída (jusante) dos bueiros, integrando o bueiro ao corpo do aterro. Recobrimento: aterro de cobertura ao bueiro, com altura mínima estabelecida em função do tipo e dimensão do bueiro. Declividade: inclinação longitudinal do bueiro cuja função é forçar o escoamento apropriado das águas, evitando velocidades excessivas.
  • 20.
    DTT/UFPR Dispositivos deDrenagem para Obras Rodoviárias 20
  • 21.
    DTT/UFPR Dispositivos deDrenagem para Obras Rodoviárias 21 3.2.3 CÁLCULO DO COMPRIMENTO DOS BUEIROS O cálculo do comprimento dos bueiros deve levar em consideração a largura da plataforma final de terraplenagem, a altura do aterro associada ao talude de aterro e a esconsidade. O comprimento final (L) será a divisão da soma da largura da plataforma (p) com os comprimentos correspondentes as projeções horizontais dos taludes de aterro (saias) a montante (pm) e jusante (pj) pelo coseno do ângulo de esconsidade (cos α). Então L = ( p + pm + pj ) ÷ cos α onde pm = 1,5 * hm pj = 1,5 * hj
  • 22.
    DTT/UFPR Dispositivos deDrenagem para Obras Rodoviárias 22 EXEMPLO – BUEIROS TUBULARES DE CONCRETO – Dimensões e quantidades
  • 23.
    DTT/UFPR Dispositivos deDrenagem para Obras Rodoviárias 23 EXEMPLO – BUEIROS CELULARES DE CONCRETO
  • 24.
    DTT/UFPR Dispositivos deDrenagem para Obras Rodoviárias 24 EXEMPLO – POSICIONAMENTO DE BUEIRO DE GREIDE E DE TALVEGUE
  • 25.
    DTT/UFPR Dispositivos deDrenagem para Obras Rodoviárias 25 3.3 DRENAGEM PROFUNDA OU SUBTERRÂNEA Os drenos profundos, dispostos longitudinalmente ao corpo estradal, são dispositivos utilizados para interceptar fluxos das águas subterrâneas e rebaixar o lençol freático, em cortes em solo ou rocha, captando e escoando as águas, de maneira a evitar que a ação das águas subterrâneas possa afetar a resistência do material do subleito e do pavimento, prejudicando o desempenho pretendido. 3.3.1 ELEMENTOS CONSTITUINTES DOS DRENOS Os drenos variam em função de seus elementos constituintes bem como são associados a outros elementos complementares, quais sejam: VALA: vala escavada mecanicamente (retro-escavadeira), no sentido longitudinal do corpo estradal, com dimenões de 0,50m de largura por 1,50m de profundidade, podendo sofrer variações; deve-se manter uma declividade longitudinal mínima de 1% e, por imposição construtiva, deve ser escavado no sentido da jusante para montante. MATERIAL FILTRANTE: com o objetivo de não deixar que outros materiais além da água tenham acesso ao sistema de drenagem, reduzindo ou perdendo toda eficiência necessária, é utilizado como material filtrante a areia natural, isenta de impurezas orgânicas e torrões de argila. A granulometria do material filtrante deverá ser verificada segundo critérios de dimensionamento de filtros, para que se ateste a sua adequação face aos solos envolventes, tendo em vista os aspectos de colmatação (preenchimento dos vazios por material carreado pela água) e permeabilidade. Caso os materiais naturais disponíveis não sejam perfeitamente adequados, admite-se a correção com outros materiais, naturais ou artificiais, ou o emprego de areia artificial resultante da britagem de rocha sã; ultimamente esta sendo bastante difundido o uso de geotêxtil ou manta sintética. MATERIAL DRENANTE: como material drenante poderão ser utilizados produtos resultantes da britagem e classificação da rocha sã, areias grossas e pedregulhos naturais ou seixos rolados, desde que isentos de impurezas orgânicas e torrões de argila. A granulometria do material drenante deverá ser verificada ou projetada segundo critérios de dimensionamento de filtros, para que sejam atendidas as seguintes condições: • o material drenante não seja colmatado pelo solo envolvente e material filtrante • a permeabilidade do material drenante seja satisfatória • os fragmentos do material drenante não sejam pequenos a ponto de bloquear ou se infiltrar no interior dos tubos de concreto perfurados, quando estes forem previstos.
  • 26.
    DTT/UFPR Dispositivos deDrenagem para Obras Rodoviárias 26 TUBOS: tem aplicação opcional em função das particulares do projeto; com diâmetro de 0,20m e proporcionando grande capacidade de vazão ao dreno, os tubos podem ser constituídos de diferentes formas a saber: • de concreto simples perfurado • de concreto poroso, onde a participação de agregado miúdo é mínima, sendo que sua permeabilidade deve assemelhar-se à do agregado graúdo que entra na composição do concreto utilizado • cerâmico ou plástico (PVC) perfurado ou ranhurado. SELO SUPERIOR: elemento opcional, cujo objetivo é impedir o acesso ao dreno de águas superficiais; normalmente é empregada uma camada de argila. BOCA DE SAÍDA: dispositivo complementar, executado na extremidade do dreno para proteger a saída d’água contra elementos que possam prejudicá-la (vegetação, etc.); é executada de concreto simples. Nas saídas dos cortes, os drenos devem ser defletidos em cerca de 45º, com raio na ordem de 5m, prolongando-se no mínimo 1m além do “off-set” do aterro anexo. 3.3.2 CLASSIFICAÇÃO DOS DRENOS Os drenos podem ser também classificados quanto: 1 - aos locais para instalação : • cortes em solo: onde as sondagens detectaram água próxima ao greide projetado • cortes em rochas: onde há diáclises por onde a água pode percolar. 2 - ao preenchimento da cava (vala): • cego ou sem tubo: pequena vazão (“francês”) • com tubo: grande vazão 3 - a permeabilidade da camada superior: • selados: impermeáveis a águas de superfície • abertos: recebem águas por cima
  • 27.
    DTT/UFPR Dispositivos deDrenagem para Obras Rodoviárias 27 4 - a granulometria (material de enchimento): • contínuos: somente um material de enchimento • descontínuos: material filtrante e material drenante 3.3.3 TIPOS DE DRENOS Em acordância aos elementos apresentados, os drenos usualmente aplicados nos projetos viários são dos seguintes tipos descritos e/ou representados graficamente, de forma combinada ou não, como segue: 1- DRENO CONTÍNUO E DESCONTÍNUO: é função do material de enchimento (filtrante e drenante) definido visando atender as características do terreno e de disponibilidade de materiais. 2- DRENO CEGO: dreno executado sem tubos, cuja função é executada pelo material drenante. 3- COLCHÃO DRENANTE: ou camada drenante, consiste numa camada de material drenante preenchendo o rebaixo de greide executado nos cortes em rocha visando impedir que a água percolada através de diáclises atinja as camadas inferiores do pavimento.
  • 28.
    DTT/UFPR Dispositivos deDrenagem para Obras Rodoviárias 28 EXEMPLO – DRENOS LONGITUDINAIS PROFUNDOS PARA CORTES EM SOLOS
  • 29.
    DTT/UFPR Dispositivos deDrenagem para Obras Rodoviárias 29 EXEMPLO – DRENOS LONGITUDINAIS PROFUNDOS – Detalhes Complementares
  • 30.
    DTT/UFPR Dispositivos deDrenagem para Obras Rodoviárias 30 EXEMPLO – POSIÇÃO DE DRENO LONGITUDINAL PROFUNDO EM RELAÇÃO Ã PLATAFORMA
  • 31.
    DTT/UFPR Dispositivos deDrenagem para Obras Rodoviárias 31 4 - DRENO A CÉU ABERTO: também chamado de valetão lateral, é fruto do alargamento lateral da plataforma que passa a atuar como dreno só que a céu aberto, dispensando drenos profundos convencionais. 5 - DRENO EM “ESPINHA-DE-PEIXE”: é um dreno sem tubo, de pequena profundidade, com a configuração de uma espinha de peixe, ou seja, uma linha principal alimentada por diversas linhas secundárias. Bastante utilizados em grandes áreas pavimentadas, em cortes com nascentes d’água e também sob aterros com nível freático muito elevado. 6 - DRENOS SUB-HORIZONTAIS: destinados a drenar maciços (taludes de corte/aterro) ou encostas naturais, visando reduzir a pressão neutra, evitando assim que as condições de saturação vigentes comprometam a estabilidade dos maciços; são empregados tubos de PVC perfurados ou ranhurados, com diâmetro de 50mm, cravados nos taludes após perfuração com equipamento apropriado. São dispositivos complementares a outros dispositivos; o objetivo é dar estabilidade ao maciço. Por dificuldade de operação dos equipamentos de perfuração, a primeira linha de drenos é implantada 1,00m acima da plataforma de terraplenagem. O número de drenos e comprimentos dependem de estudos hidrológicos e geotécnicos.
  • 32.
    DTT/UFPR Dispositivos deDrenagem para Obras Rodoviárias 32 EXEMPLO – DRENOS SUB-HORIZONTAIS – Detalhes Complementares
  • 33.
    DTT/UFPR Dispositivos deDrenagem para Obras Rodoviárias 33 3.4 DRENAGEM SUBSUPERFICIAL Constituem dispositivos que têm a função de drenar águas superficiais infiltradas no pavimento, podendo ser executados transversal ou longitudinalmente ao eixo da estrada. 3.4.1 DRENOS TRANSVERSAIS RASOS Têm por objetivo drenar águas que se infiltram no pavimento e percolam longitudinalmente através da superfície de contato pavimento e terraplanagem. São aplicados nas saídas de corte e nos pontos baixos de aterros. 3.4.2 DRENOS LONGITUDINAIS RASOS Têm como função coletar e conduzir longitudinalmente águas infiltradas no pavimento, em seções em que há confinamento lateral do pavimento por outros dispositivos (sarjetas, etc.). 3.4.3 BASE DRENANTE Consiste numa camada betuminosa de granulometria aberta, muito permeável, posicionada abaixo do revestimento e estendida até o bordo dos acostamentos, propiciando condição de livre drenagem às águas de infiltração no pavimento. Os materiais empregados são pré-misturados abertos e macadame betuminoso. 3.4.4 DRENOS LATERAIS DA BASE (SANGRAS) Têm por objetivo propiciar condições de drenagem, a intervalos definidos, a uma base drenante que é confinada lateralmente por acostamentos impermeáveis. Também, os materiais utilizados são pré-misturados abertos ou macadame betuminoso.
  • 34.
    DTT/UFPR Dispositivos deDrenagem para Obras Rodoviárias 34 EXEMPLO – DRENOS SUB-SUPERFICIAIS – Detalhes Complementares
  • 35.
    DTT/UFPR Dispositivos deDrenagem para Obras Rodoviárias 35 EXEMPLO – LOCAIS PARA IMPLANTAÇÃO DE DRENOS LONGITUDINAIS E TRANSVERSAIS EM CORTES E ATERROS
  • 36.
    DTT/UFPR Dispositivos deDrenagem para Obras Rodoviárias 36 EXEMPLO – ESQUEMA GERAL DE DRENAGEM
  • 37.
    DTT/UFPR Dispositivos deDrenagem para Obras Rodoviárias 37 4 REFERÊNCIAS BIBLIOGRÁFICAS ÁLBUM DE PROJETO-TIPO DE DISPOSITIVOS DE DRENAGEM - MT / Departamento Nacional de Estradas de Rodagem - 1988 ÁLBUM DE PROJETO-TIPO DE DRENAGEM, OBRAS DE ARTE CORRENTE, PONTILHÕES E OBRAS COMPLEMENTARES - SETR / Departamento de Estradas de Rodagem do Estado do Paraná - 1989 ESPECIFICAÇÕES GERAIS PARA OBRAS RODOVIÁRIAS – Volume I/IV - MT / Departamento Nacional de Estradas de Rodagem - 2000 APOSTILA DE TRANSPORTES: Drenagem / Sinalização / Obras Complementares – Djalma Martins Pereira / Eduardo Ratton / Gilza Fernandes Blasi / Wilson Küster Filho - Diretório Acadêmico do Setor de Tecnologia da UFPR – 1997 DRENAGEM SUPERFICIAL E SUBTERRÂNEA DE ESTRADAS – R. Michelin INSTRUÇÕES PARA DERNAGEM DE RODOVIAS – Tomo I e II - MT / Departamento Nacional de Estradas de Rodagem. DRAINAGE OF PAVEMENTS STRUCTURES – Asphalt Institute DRAINAGE OF HIGHWAY AND AIRFIELD PAVEMENTS – Cedergren (traduzido) MANUAL DE IMPLANTAÇÃO BÁSICA – MT / Departamento Nacional de Estradas de Rodagem - 1975 DRENAGEM DE RODOVIAS E FERROVIAS – Antonio Lopes Pereira – Ao Livro Técnico Ltda - 1959