DRENAGEM URBANA
Material didático para Drenagem Urbana.
Socorro Lamego
1
I - SISTEMAS DE DRENAGEM PLUVIAL
1. Introdução
Os sistemas de drenagem são classificados de acordo com suas dimensões, em sistemas de
microdrenagem, também denominados de sistemas iniciais de drenagem, e de
macrodrenagem.
A microdrenagem inclui a coleta e afastamento das águas superficiais ou subterrâneas
através de pequenas e médias galerias, fazendo ainda parte do sistema todos os
componentes do projeto para que tal ocorra.
A macrodrenagem inclui, além da microdrenagem, as galerias de grande porte ( D > 1,5m )
e os corpos receptores tais como canais e rios canalizados.
I.2. Terminologia Básica
Um sistema de drenagem de águas pluviais é composto de uma série de unidades e
dispositivos hidráulicos para os quais existe uma terminologia própria e cujos elementos
mais freqüentes são conceituados a seguir.
Greide - é uma linha do perfil correspondente ao eixo longitudinal da superfície livre da
via pública.
Guia - também conhecida como meio-fio, é a faixa longitudinal de separação do passeio
com o leito viário, constituindo-se geralmente de peças de granito argamassadas.
Sarjeta - é o canal longitudinal, em geral triangular, situado entre a guia e a pista de
rolamento, destinado a coletar e conduzir as águas de escoamento superficial até os pontos
de coleta (Figura I.1).
Sarjetões - canal de seção triangular situado nos pontos baixos ou nos encontros dos leitos
viários das vias públicas, destinados a conectar sarjetas ou encaminhar efluentes destas para
os pontos de coleta (Figura I.2).
Bocas coletoras - também denominadas de bocas de lobo. São estruturas hidráulicas para
captação das águas superficiais transportadas pelas sarjetas e sarjetões; em geral situam-se
sob o passeio ou sob a sarjeta (Figura I.3).
2
Figura I.1 - Modelo de sarjeta
Figura I.2 - Sarjetão típico em paralelepípedos
Galerias - são condutos destinados ao transporte das águas captadas nas bocas coletoras até
os pontos de lançamento; tecnicamente denominada de galerias tendo em vista serem
construídas com diâmetro variando de 600mm a 1500mm.
Condutos de ligação - também denominados de tubulações de ligação, são destinados ao
transporte da água coletada nas bocas coletoras até às galerias pluviais (Figura I.3).
Poços de visita - são câmaras visitáveis situadas em pontos previamente determinados,
destinadas a permitir a inspeção e limpeza dos condutos subterrâneos (Figura I.4).
Trecho de galeria - é a parte da galeria situada entre dois poços de visita consecutivos.
Caixas de ligação - também denominadas de caixas mortas, são caixas de alvenaria
subterrâneas não visitáveis, com finalidade de reunir condutos de ligação ou estes à galeria
(Figura I.5).
Bacias de drenagem - é a área contribuinte para a seção em estudo.
Tempo de concentração - é o menor tempo necessário para que toda a bacia de drenagem
possa contribuir para a secção em estudo, durante uma precipitação torrencial.
Tempo de recorrência - intervalo de tempo onde determinada chuva de projeto é igualada
ou suplantada estatisticamente; também conhecido como período de recorrência ou de
retorno.
3
Figura I.3 - Boca coletora sob passeio
Figura I.4 - Poço de visita típico
Chuva intensa - precipitação com período de retorno de 100 anos.
Chuva freqüente - precipitação com período de retorno de até 10 anos.
Chuva torrencial - precipitação uniforme sobre toda a bacia.
Pluviômetro - instrumento que mede a totalidade da precipitação pela leitura do líquido
acumulado em um recipiente graduado - proveta.
Pluviógrafo - instrumento que registra em papel milimetrado especialmente preparado, a
evolução da quantidade de água que cai ao longo da precipitação, ou seja, mede a
intensidade de chuva.
4
.2. Objetivos
Os sistemas de drenagem urbana são essencialmente sistemas preventivos de inundações,
principalmente nas áreas mais baixas das comunidades sujeitas a alagamentos ou marginais
de cursos naturais de água. É evidente que no campo da drenagem, os problemas agravam-
se em função da urbanização desordenada.
Todo plano urbanístico de expansão deve conter em seu bojo um plano de drenagem
urbana, visando delimitar as áreas mais baixas potencialmente inundáveis a fim de
diagnosticar a viabilidade ou não da ocupação destas áreas de ponto de vista de expansão
dos serviços públicos.
Um adequado sistema de drenagem, quer de águas superficiais ou subterrâneas, onde esta
drenagem for viável, proporcionará uma série de benefícios, tais como:
- desenvolvimento do sistema viário;
- redução de gastos com manutenção das vias públicas;
- valorização das propriedades existentes na área beneficiada;
- escoamento rápido das águas superficiais, facilitando o tráfego por ocasião das
precipitações;
3. Drenagem no Brasil
No Brasil, institucionalmente, a infra-estrutura de microdrenagem é reconhecida como da
competência dos governos municipais que devem ter total responsabilidade para definir as
ações no setor, ampliando-se esta competência em direção aos governos estaduais, na
medida em que crescem de relevância as questões de macrodrenagem, cuja referência
fundamental para o planejamento são as bacias hidrográficas. Isto é, deve ser de
competência da Administração Municipal - a Prefeitura, os serviços de infra-estrutura
urbana básica relativos à microdrenagem e serviços correlatos - incluindo-se
terraplenagens, guias, sarjetas, galerias de águas pluviais, pavimentações e obras de
5
contenção de encostas, para minimização de risco à ocupação urbana. De um modo geral
nas cidades brasileiras, a infra-estrutura pública em relação a drenagem, como em outros
serviços básicos, apresenta-se como insuficiente.
PARÂMETROS HIDROLÓGICOS:
CHUVAS – CHUVA DE PROJETO
A precipitação observada é uma sequência cronológica de eventos de
chuva que podem ser caracterizados, um a um, pelas seguintes variáveis
(unidades usuais entre parênteses):
Lâmina precipitada P (mm);
Duração D (min);
Intensidade média precipitada iméd = P/D (mm/h);
Lâmina máxima Pmáx (mm) da sequência de intervalos de
tempo t que discretizam D; Intensidade máxima imáx =
Pmáx / t (mm/h);
Posição de Pmáx ou imáx dentro da duração D (entre 0 e 1, do início ao
fim de D).
Tipos de Chuva
São três os tipos de chuvas para a Hidrologia: chuvas convectivas, chuvas orográficas e
chuvas frontais
As convectivas - São características deste tipo de precipitação a curta duração, alta
intensidade, freqüentes descargas elétricas e abrangência de pequenas áreas.
As chuvas orográficas - Caracterizam-se pela longa duração e baixa intensidade,
abrangendo grandes áreas por várias horas continuamente e sem descargas elétricas
As chuvas frontais - são mais fortes que as orográficas abrangendo, porém, como aquelas,
grandes áreas, precipitando-se intermitentemente com breves intervalos de estiagem e com
presença de violentas descargas elétricas.
6
Medição de Chuva
Dois aparelhos são comumente empregados nas medições das chuvas. São eles o
pluviômetro e o pluviógrafo.
No pluviômetro é lido a altura total de água precipitada, ou seja, a lâmina acumulada
durante a precipitação, sendo que seus registros são sempre fornecidos em milímetros por
dia ou em milímetros por chuva, com anotação da mesma dependendo da capacidade e do
capricho do operador (Figura II.1).
O pluviógrafo é mais encontrado nas estações meteorológicas propriamente ditas e registra
a intensidade de precipitação, ou seja, a variação da altura de chuva com o tempo. Este
aparelho registra em uma fita de papel em modelo apropriado, simultaneamente, a
quantidade e a duração da precipitação. A sua operação mais complicada e dispendiosa e o
próprio custo de aquisição do aparelho, tornam seu uso restrito, embora seus resultados
sejam bem mais importantes hidrologicamente (Figura II.2).
Figura II.1 - Instalação de um pluviômetro
7
Figura II.2(a) - Pluviógrafo: esquema de funcionamento
Para projetos de galerias pluviais devem ser conhecidos as variações da altura de chuva
com o tempo. Isto só é possível através de medições via pluviógrafos.
Um pluviógrafo é constituído de duas unidades, a saber: elemento receptor e elemento
registrador. O receptor é semelhante ao de um pluviômetro comum diferindo, apenas,
quanto a superfície receptora que é de 200cm2, ou seja, a metade da área do pluviômetro. O
elemento registrador consta de um cilindro oco, dentro do qual fica instalado um
equipamento de relojoaria que faz girar um pequeno carretel situado sob o fundo do
cilindro. Este cilindro gira uma volta completa em 24 horas, o que permite a mudança
diária do papel com os registros de precipitações ocorridos, bem como o arquivamento
contínuo para possíveis consultas futuras dos dados registrados. Entre os vários modelos
conhecidos, o mais empregado no Brasil é o de Hellmann-Fuess (Figura II.3).
8
Figura II.2(b) - Pluviógrafo: esquema de instalação
Figura II.3 - Esquema do pluviógrafo de Hellmann-Fuess
Durante uma precipitação sobre o receptor a água escorre por um funil metálico 2, até o
cilindro de acumulação 3. Neste cilindro encontra-se instalado um flutuador 4 ligado por
uma haste vertical 6 a um suporte horizontal 9, que por sua vez possui em sua extremidade
uma pena 8 que imprime sobre o papel do cilindro de gravação 5 a altura acumulada de
água no cilindro de acumulação 3. Deste último, também parte um sifão 11 que servirá para
9
esgotamento da água quando esta atingir uma altura máxima, despejando o volume
sifonado em um vasilhame 10 localizado na parte inferior da instalação. Essa altura máxima
é função da capacidade de registro vertical no papel, ou seja, quando a pena atinge a
margem limite do papel, imediatamente ocorre o esgotamento, possibilitando que a pena
volte a margem inicial continuando o registro acumulado.
Intensidade de Chuva
É a quantidade de chuva por unidade tempo para um período de recorrência e duração
previstos. Sua determinação, em geral, é feita através de análise de curvas que relacionam
intensidade/duração/freqüência, elaboradas a partir de dados pluviográficos anotados ao
longo de vários anos de observações que antecedem ao período de determinação de cada
chuva.
Para localidades onde ainda não foi definida ou estudada a relação citada, o procedimento
prático é adotar-se, com as devidas reservas, equações já determinadas para regiões
similares climatologicamente.
Equações de Chuva
Expressões Típicas
As equações de chuva, que são expressões empíricas das curvas
intensidade/duração/freqüência, apresentam-se normalmente nas seguintes formas:
1) i = a / ( t + b ),
2) i = c / tm
,
3) i = a .T n
/ ( t + b )r
,
onde
i - intensidade média em milímetros por minutos ou milímetros por hora;
t - tempo de duração da chuva em minutos;
T - tempo de recorrência em anos;
a, b, c, d, e, m, n e r - parâmetros definidos a partir das observações básicas para
elaboração da equação.
Exemplos Brasileiros
a) Cidade de São Paulo (Engos. A. G. Occhipintt e P. M. Santos)
- para duração de até 60 min
i = A/(t + 15)r
para A = 27,96.T 0,112
e r = 0,86T -0,0114
,
i - mm/min e t - min
- para durações superiores
i = 42,23.T 0,15
/t 0,82
, i - mm/h e t - min;
b) Cidade do Rio de Janeiro (Engº Ulisses M. A. Alcântara)
i = 1239.T 0,15
/(t+20) 0,74
, i - mm/h;
c) Curitiba (Prof. P. V. Parigot de Souza)
i = 99,154.T 0,217
/(t+26) 1,15
, i - mm/min;
10
d) João Pessoa (Engº J. A. Souza)
i = 369,409.T 0,15
/(t+5) 0,568
, i - mm/h (Figura II.4);
e) Sertão Oriental Nordestino ( Projeto Sertanejo - 19 )
i = 3609,11.T 0,12
/(t + 30) 0,95
, i - mm/h (Figura II.5);
f) Porto Alegre (Engº C. Meneses e R. S. Noronha)
i = a/(t+b), i - mm/min e com os valores de "a" e "b" variando com o tempo de recorrência
pretendido:
T (anos) a b
5 23 2,4
10 29 3,9
15 48 8,6
20 95 16,5
A equação IDF(Intensidade/Duraçào/Frequencia) recomendada está apresentada
abaixo e foi determinada durante a elaboração do Plano Diretor de Drenagem
Urbana do município, do qual este faz parte.
i = 1194,273 T 0,1738
(60 + 10) 0,7457
Onde: i é a intensidade da chuva em mmh-1
, T é o período de retorno do evento em anos e t
é a duração em minutos.
Exemplo 2.1 Para o dimensionamento de uma rede de microdrenagem numa área
residencial, determinar a intensidade e o volume pluviométrico de uma precipitação com
duração de 1 hora.
DEFLÚVIO SUPERFICIAL DIRETO
Denomina-se deflúvio superficial direto o volume de água que escoa da superfície de uma
determinada área devido a ocorrência de uma chuva torrencial sobre aquela área.
Para determinação desse volume, vários métodos são conhecidos, os quais podem ser
classificados nos grupos abaixo
11
a) medições diretas
b) processos comparativos
c) métodos analíticos
d) fórmulas empíricas
As medições diretas e processos comparativos restringem-se mais para determinações de
vazões em cursos de água perenes tais como córregos, pequenos canais, etc, ficando
praticamente sem utilização em projetos de micro-drenagem em geral.
As fórmulas empíricas são resultantes de equacionamento de um grande número de
observações sendo, por isso, bastante confiáveis, mas de utilização restrita a localidade de
origem das observações ou regiões similares.
Procedimentos mais freqüentemente empregados, tanto para obras de micro-drenagem
como para de macro-drenagem, são os de natureza analítica, visto que trazem na sua
definição estudos matemáticos/empíricos que promovem maior credibilidade aos seus
resultados. Diante do exposto os métodos analíticos é que serão objeto de estudos a seguir.
Métodos Analíticos
Como métodos analíticos são conhecidos os três seguintes: Método Racional, Método do
Hidrograma Unitário e a Análise Estatística.
Para obras de micro-drenagem e método mais empregado em todo o mundo ocidental é o
Método Racional, por ser o de mais fácil manipulação, mas, devido a sua natureza
simplificada da tradução do fenômeno, não é recomendável para o cálculo de contribuições
de bacias com áreas superiores a 1,0 km2
Para bacias de drenagem com área superior a 1,0 km2
justifica-se uma análise mais acurada,
pois a simplificação dos cálculos poderá acarretar obras super ou sub-dimensionadas do
ponto de vista hidráulico. Recomenda-se que para obras de drenagem de áreas de
contribuição superiores a 100 hectares seja utilizado o Hidrograma Unitário Sintético,
desde que a elaboração do mesmo seja baseada em dados obtidos através de análises da
área em estudo.
A Análise Estatística é recomendada para cursos de águas de maior porte, onde a área de
contribuição seja superior a 20 km2, servindo essencialmente para previsão dos volumes de
cheias.
Sendo assim conclui-se que o Método Racional deva ser objeto de estudo mais detalhado a
seguir, por ser este o indicado para projetos de micro-drenagem em geral.
12
Método Racional
Fórmula
O Método Racional relaciona axiomaticamente a precipitação com o deflúvio,
considerando as principais características da bacia, tais como área, permeabilidade, forma,
declividade média, etc, sendo a vazão de dimensionamento calculada pela seguinte
expressão:
Q = 166,67. C. i. A,
onde:
Q - deflúvio superficial direto em litros por segundo;
C - coeficiente de escoamento superficial;
i - intensidade média de chuva para a precipitação ocorrida durante o tempo de
concentração da bacia em estudo, em milímetro por minuto;
A - área da bacia de contribuição em hectares.
Tempo de Concentração
Conceitua-se tempo de concentração como o espaço de tempo decorrido desde o início da
precipitação torrencial sobre a bacia até o instante em que toda esta bacia passa a contribuir
para o escoamento na secção de jusante da mesma.
Em um sistema de galerias corresponde a duas parcelas distintas, sendo a primeira
denominada de "tempo de entrada", ou seja, tempo necessário para que as contribuições
superficiais atinjam a secção inicial de projeto, enquanto que a segunda corresponde ao
tempo gasto pelo escoamento através dos condutos, a partir do instante em que toda a bacia
passa a contribuir para a secção em estudo.
Para o escoamento em superfícies, recomenda-se que o tempo de concentração seja
estimado conforme a equação mais adequada, a ser selecionada dentre as apresentadas
posteriormente. Para a estimativa do tempo de concentração em canais, redes de
drenagem, valas, entre outros, deve ser utilizada a equação de Manning, conforme segue:
Para o escoamento em superfícies, recomenda-se que o tempo de concentração seja
estimado conforme a equação mais adequada, a ser selecionada dentre as apresentadas
posteriormente. Para a estimativa do tempo de concentração em canais, redes de
drenagem, valas, entre outros, deve ser utilizada a equação de Manning, conforme segue:
13
V = Rh 2/ 3
. S 1/2
n
Onde: V é a velocidade do escoamento (m/s); S é a declividade do fundo (m/m); n é o
coeficiente de rugosidade de Manning (consultar Tabela 2.5).; Rh é o raio hidráulico
(m), calculado conforme a equação:
Rh = A
Pm
Onde: A é a área da seção transversal (m2
);
Pm é o perímetro molhado da seção transversal (m).
Determinada a velocidade do escoamento, determina-se o tempo de concentração através
da equação:
tc = L
V
Onde: tc é o tempo de concentração(segundos)
L é o comprmento do trecho onde ocorre escoamento
V é a velocidade do escoamentro(m/s)
Intensidade Média das Precipitações
No dimensionamento de sistemas de drenagem define-se intensidade de chuva como a
quantidade de água caída na unidade de tempo, para uma precipitação com determinado
período de retorno e com duração igual ao tempo de concentração.
No caso do dimensionamento de galerias a intensidade de chuva é determinada a partir da
equação de chuva adotada, onde a duração corresponde ao tempo de concentração e a
intensidade a obter-se será a média máxima.
A intensidade da precipitação depende dos fatores :
1. Equação IDF(intensidade/duração/freqüência) característica da região
2. Tempo de concentração
14
Período de Retorno
Os sistemas de micro-drenagem, em geral, são dimensionados para frequências de
descargas de 2, 5 ou 10 anos, de acordo com as características da ocupação da área que se
quer beneficiar.
Hidrograma Unitário Sintético
O Soil Conservation Service ( SCS,1957) apresentou um método para determinação do
hidrograma unitário em que o mesmo é considerado um triângulo como se vê na figura
abaixo. A área do triângulo é igual ao volume escoado diretamente na bacia.
onde tr = duração da precipitação; tc= tempo de concentração em horas; tp´ = tempo de
pico; tp´ + tc = tb (tempo de base); tp = tempo de retardo e tr = duração da precipitação.
Exemplos
1. Um determinado trecho de galeria deverá receber e escoar o deflúvio superficial oriundo
de uma área de 2,50 ha, banhada por uma chuva intensa e com um coeficiente de
escoamento superficial igual a 0,40 . Se o tempo de concentração previsto para o início do
trecho é de 16,6 minutos, calcular a vazão de jusante do mesmo sabendo-se que a equação
de chuva máxima local é dada pela expressão i = 1840/(t + 167,4), com i-mm/min e t-min.
Solução:
Q = 166,67 . C. i. A = 166,67 x 0,40 x (1840/16,6+167,4) x 2,5 = 1 667 l/s
Assim, Q = 1,67 m3
/s .
2. Encontrar um coeficiente de escoamento adequado para uma área de pequena inclinação,
bem urbanizada, onde 22% corresponde a ruas asfaltadas e bem conservadas, 8% de
passeios cimentados, 36% de pátios ajardinados e 34% de telhados cerâmicos. Que setor da
área urbana parece ser este?
Solução:
C = 0,22 x 0,95 + 0,08 x 0,80 + 0,36 x 0,10 + 0,34 x 0,90 = 0,615
Assim, C = 0,62, o que equivale a área adjacente ao centro .
15
Escalas de projeto (fonte, microdrenagem e macrodrenagem)
Os sistemas de drenagem pluvial urbano são, normalmente, agrupados em
três categorias, de acordo com o seu domínio:
1. fonte,
2. microdrenagem e macrodrenagem.
A drenagem na fonte é definida pelo escoamento que ocorre na residência, no
edifício, lote, condomínio ou empreendimento individualizado, estacionamentos, área
comercial, parques e passeios.
O dimensionamento de estruturas de drenagem convencionais como calhas dos
telhados, condutores verticais e condutores horizontais deve ser realizado seguindo as
recomendações técnicas da NBR 10.844 - Instalações Prediais de Águas Pluviais, do
ano vigente.
A definição dos sistemas de microdrenagem pode ser realizada a partir de áreas de
drenagem utilizadas como referência, como, por exemplo, o limite de 2km2
. Em
alguns casos, os sistemas de microdrenagem também podem ser definidos em função do
diâmetro das tubulações, como, por exemplo, tratar como rede de microdrenagem toda a
tubulação com diâmetro inferior a 1m.
A macrodrenagem engloba um conjunto de redes de microdrenagem. Nesse caso, as áreas
de drenagem envolvidas são de, pelo menos, 2km2
, ou então, pode ser utilizado como
critério o diâmetro das redes de condutos de drenagem acima de um determinado valor. Por
exemplo, se na microdrenagem são considerados diâmetros até 1,5m, então a
macrodrenagem será composta por condutos com diâmetros ou capacidade superiores.
O sistema de macrodrenagem deve ser projetado com capacidade superior ao de
microdrenagem, com riscos de acordo com os prejuízos humanos e materiais potenciais.
16
- SARJETAS
Definição :
São canais, em geral de seção transversal triangular, situados nas laterais das ruas, entre o
leito viário e os passeios para pedestres, destinados a coletar as águas de escoamento
superficial e transportá-las até às bocas coletoras. Limitadas verticalmente pela guia do
passeio, têm seu leito em concreto ou no mesmo material de revestimento da pista de
rolamento (Fig.IV.1). Em vias públicas sem pavimentação é freqüente a utilização de
paralelepípedos na confecção do leito das sarjetas, sendo neste caso, conhecidas como
linhas d'água.
FIG. - Sarjeta triangular
Capacidade Teórica
Para o cálculo de sarjetas, projetistas brasileiros comumente utilizam a teoria de Manning,
onde
v = R2/3
. I1/2
. n-1
.
A partir desta consideração, o formulário que segue indica as equações para o cálculo da
capacidade teórica de cada sarjeta, em função de sua seção típica.
Sarjeta em Canal Triangular
Definindo como
yo- altura máxima de água na guia,
wo - largura máxima do espelho d'água,
z - (= yo /wo) inverso da declividade transversal,
I - inclinação longitudinal da sarjeta (do greide da rua),
n - coeficiente de rugosidade de Manning,
Q - (= v/A)equação da continuidade,
R - raio hidráulico,
então, pela Figura IV.2: dQ = v.dA,
17
Figura - Elementos da dedução da capacidade de uma sarjeta em canal triangular
onde,
R = y.dx / dx = y,
dA = y.dx,
v = R 2/3
. I1/2
/n = y 2/3
. I 1/2
/n e dx/dy = z ou dx z.dy,
logo,
dQ = (y2/3
. I1/2
/n). y.dx
ou
dQ = (z. y5/3
. I1/2
/n ). dy
Integrando a equação de dQ / dy para "y" variando de zero a yo, temos
de onde
resultando
com Qo em m³/s e yo em metros. Para Qo em l/s a equação toma a forma
Qo= 375.I 1 /2
. (z/n). yo
8/3
onde Qoé a vazão máxima teórica transportada por uma sarjeta com declividade
longitudinal "I" e transversal "1/z".
Sarjeta Parcialmente Cheia (Figura IV.3)
18
A vazão transportada Q (< Qo) é calculada aplicando-se a fórmula anterior substituindo-se
"yo" por "y" ( y < yo ).
Figura IV.3 - Sarjeta parcialmente cheia
Porção de Sarjeta (Figura IV.4)
Situação freqüente em ruas onde sobre a pista de rolamento, em geral paralelepípedos, é
lançado um outro tipo de revestimento, normalmente asfáltico. Neste caso calcula-se o
valor para sarjeta original e subtrai-se a parcela correspondente a ocupação da seção pelo
novo pavimento, resultando:
Q1 = Qo - Q', ou Q1 = 0,375.I 1/2
.(z/n).(yo
8/3
- y' 8/3
)
se o extremo do novo pavimento interceptar o espelho da sarjeta original.
Figura IV.4 - Porção de sarjeta
Valores dos Coeficientes "n" de Manning para Sarjetas
Os valores de "n" são estimados em função de material e do acabamento superficial das
sarjetas, como apresentado da Tabela IV.1.
Tabela IV.1. Coeficientes de Rugosidade de Manning
Superfície " n "
_______________________________________________
- sarjeta em concreto com bom cabamento
0,012
19
- revestimento de asfalto
a)textura lisa 0,013
b)textura áspera 0,016
- revestimento em argamassa de cimento
a) acabamento com espalhadeira 0,014
b) acabamento manual alisado 0,016
c) acabamento manual áspero 0,020
-revestimento com paralelepípedos argamassados
0,020
-sarjetas com pequenas declividades longitudinais (até 2% ) sujeitas a
assoreamento "n" correspondente a superfície + 0,002 a 0,005
Exemplos :
1. Determinar a vazão máxima teórica na extremidade de jusante de uma sarjeta situada em
uma área com as seguintes características: A = 2,0 ha, i = 700/t2/3
c/ "i" em mm/h e "t" em
min, C = 0,40 e tc = 30 min. São dados da sarjeta: I = 0,01 m/m, z = 16 e n = 0,016.
Solução:
2. No exemplo anterior verificar a lâmina teórica de água junto a guia.
Solução:
3. No mesmo exemplo verificar a velocidade de escoamento.
Solução:
BOCAS COLETORAS
Definição
É uma estrutura hidráulica destinada a interceptar as águas pluviais que escoam pela
sarjetas para, em seguida, encaminhá-las às canalizações subterrâneas. São também
freqüentemente denominadas de bocas-de-lobo.
Classificação
Dependendo da estrutura, localização ou do funcionamento, as bocas coletoras recebem
várias qualificações agrupadas como segue:
20
a) quanto a a estrutura da abertura ou entrada
- simples ou lateral (Figura V.1);
- gradeadas com barras longitudinais, transversais ou mistas;
- combinada;
- múltipla.
b) quanto a localização ao longo das sarjetas
- intermediárias;
- de cruzamentos;
- de pontos baixos.
c) quanto ao funcionamento
- livre;
- afogada.
Definição: chama-se de depressão um rebaixamento feito na sarjeta junto a entrada da boca
coletora, com a finalidade de aumentar a capacidade de captação desta.
Comentários:
a) quanto à localização
- as intermediárias são aquelas que situam-se em pontos ao longo das sarjetas onde a
capacidade destas atingem o limite máximo admissível;
- as de cruzamento situam-se imediatamente a montante das seções das sarjetas, nas
esquinas dos quarteirões, nascendo da necessidade de evitar o prolongamento do
escoamento pelo leito dos cruzamentos;
- as bocas coletoras de pontos baixos caracterizam-se por receberem contribuições por dois
lados, visto que situam-se em pontos onde há a inversão côncava da declividade de rua, ou
seja, na confluência de duas sarjetas de um mesmo lado da rua.
b) quanto ao funcionamento
- dependendo da altura da água na sarjeta e da abertura da boca coletora denomina-se de
livre a que funciona como vertedor e de afogada a que funciona como orifício, sendo estas
mais freqüentes em pontos baixos e, na maioria, com grades.
21
Figura V.1 - Boca coletora simples ou lateral
Escolha do Tipo de Boca Coletora
A indicação do tipo de bola coletora á de essencial importância para a eficiência da
drenagem das águas de superfície. Para que esta opção seja correta, deve-se analisar
diversos fatores físicos e hidráulicos, tais como ponto de localização, vazão de projeto,
declividade transversal e longitudinal da sarjeta e da rua, interferência no tráfego e
possibilidades de obstruções. A seguir são citadas, para cada tipo de boca coletora, as
situações em que melhor cada uma se adapta.
a) Boca coletora lateral (Figura V.1)
- pontos intermediários em sarjetas com pequena declividade longitudinal ( I  5%);
- presença de materiais obstrutivos nas sarjetas;
- vias de tráfego intenso e rápido;
- montante dos cruzamentos.
b) Boca coletora com grelha (Figura V.2)
- sarjetas com limitação de depressão;
- inexistência de materiais obstrutivos;
- em pontos intermediários em ruas com alta declividade longitudinal (I  10%).
c) Combinada (Figura V.3)
- pontos baixos de ruas;
22
- pontos intermediários da sarjeta com declividade média entre 5 e 10%;
- presença de detritos.
d) Múltipla (Figura V.4)
- pontos baixos;
- sarjetas com grandes vazões.
Figura V.2 - Boca coletora com grelha
Figura V.3 - Boca coletora combinada
Figura V.4 - Boca coletora lateral múltipla
Espaçamento entre Bocas Coletoras Consecutivas
As bocas coletoras intermediárias são freqüentes em quarteirões com fachadas extensas, ou
seja, onde os cruzamentos de ruas consecutivos encontram-se bastante afastados um do
outro.
23
Recomendam, por exemplo, um par de bocas coletoras a cada 500 m2 de rua e outros a
cada 40 m de eixo.
De um modo geral a frequência de pares de bocas coletoras ocorre a cada 40 a 60 m de
extensão de rua ou a cada 300 a 800 m2 de área das mesmas.
GALERIAS
Definições
O termo galeria por si só já é designação de todo conduto subterrâneo com diâmetro
equivalente igual ou superior a 400 mm. Tecnicamente sistema de galerias pluviais é um
conjunto de bocas coletoras, condutos de ligação, galerias e seus órgãos acessórios tais
como poços de visita e caixas de ligação. É a parte subterrânea de um sistema de micro-
drenagem.
Dimensões
O diâmetro mínimo recomendado para galerias pluviais é de 400 mm. No entanto, é
comum, principalmente em projetos de baixo custo, o emprego do diâmetro de 300 mm em
trechos iniciais e em condutos de ligação.
As dimensões das galerias são sempre crescentes para jusante não sendo permitida a
redução da seção no trecho seguinte mesmo que, por um acréscimo da declividade natural
do terreno, o diâmetro até então indicado passe a funcionar superdimensionado.
Declividade
A declividade de cada trecho é estabelecida a partir da inclinação média da do terreno ao
longo do trecho, do diâmetro equivalente e dos limites de velocidade. Na prática os valores
empregados variam normalmente de 0,3% a 4,0%, pois para declividades fora deste
intervalo é possível a ocorrência de velocidades incompatíveis com os limites
recomendados.
Terrenos com declividades superiores a 10% normalmente requerem do projetista soluções
específicas para a situação. Em terrenos planos são freqüentes problemas de lançamento
final de efluentes.
Hidraulicamente tem-se que quanto maior a declividade das galerias maior será a
velocidade de escoamento e quanto maior as dimensões transversais dos condutos menor
será a declividade necessária.
Recobrimento da Canalização
Função da estrutura da canalização, adota-se como recobrimento mínimo 1,0 m e como
limite máximo 4,0 m. Valores fora do intervalo citado, normalmente requerem tubos ou
estruturas reforçadas e análises especiais que justifiquem a opção do projetista.
24
POÇOS DE VISITA
Definição
Poço de vista é uma câmara visitável através de uma abertura existente na sua parte
superior, ao nível do terreno, destinado a permitir a reunião de dois ou mais trechos
consecutivos e a execução dos trabalhos de manutenção nos trechos a ele ligados (Figura
VII.1).
Figura VII.1 - Poço de visita convencional
Localização
Convencionalmente empregam-se poços de visita:
- nas cabeceiras das redes;
- nas mudanças de direção dos coletores (todo trecho tem que ser reto);
- nas alterações de diâmetro;
- nas alterações de posição e/ou direção de geratriz inferior da tubulação;
- nos desníveis nas calhas;
- nas mudanças de material;
- nos encontros de coletores;
- e em posições intermediárias em coletores com grandes extensões em linha reta onde a
distância entre dois PV consecutivos não deverá exceder 100m.
Dimensões
25
A fim de permitir o movimento vertical de um operador, a chaminé, bem como o tampão,
terão um diâmetro mínimo útil de 0,60m. O balão, sempre que possível, uma altura útil
mínima de 2,0 metros, para que o operador maneje com liberdade de movimentos, os
equipamentos de limpeza e desobstrução no interior do mesmo. A chaminé, não deverá ter
altura superior a 1,0 m, por recomendações funcionais, operacionais e, até, psicológicas
para o operador.
Elementos para Especificações
Pré-moldados (Figura VII.3.)
Os poços de vista executados com anéis pré-moldados de concreto armado são muito raros,
tendo em vista que as tubulações de saída são raramente inferiores a 400 mm de diâmetro.
São construídos com a superposição vertical dos anéis de altura 0,30m ou 0,40m, sendo
que, para o balão, estas peças tem 1,00 a 1,50 m de diâmetro e, para a chaminé 0,60m,
como dimensões úteis mínimas.
A redução do balão para a chaminé é feita por uma laje pré-moldada, "peça de transição",
servindo também como suporte para a chaminé, com uma abertura excêntrica de 0,60m,
que deve ser colocada de maneira tal que o centro de abertura projete-se sobre o eixo do
coletor principal que passa pelo poço para montante (Figura VII.4).
Figura VII.3 - PV em pré-moldados
26
Figura VII.4 - Peça de transição
A construção de um PV com anéis pré-moldados inicia-se com o nivelamento da fundação
com brita compactada. A seguir é colocada uma camada de concreto simples 1:3:5,
denominada de laje de fundo, com uma espessura mínima de 0,20m, sob a calha de saída do
trecho de jusante, que será a base de sustentação para toda a estrutura do poço.
O primeiro anel ficará apoiado numa parede de concreto ou alvenaria, numa altura mínima
de 0,50m, para evitar a quebra desse anel quando da ligação das tubulações ao poço, o que
provocaria danos a estabilidade estrutural do poço, enquanto que o acabamento do piso no
fundo do PV é dado de modo a resultar numa declividade de 2% em direção a bordo das
calhas. Este enchimento do fundo, em concreto 1:4:8, para moldagem das calhas, é
denominado de "almofada do PV".
O acesso ao fundo do poço é feito por uma escada tipo marinheiro, vertical, com degraus
equiespaçados de 0,30m ou 0,40m e um mínimo útil de 0,15m de largura por 0,08m de
altura (Figura VII.5), os quais vão sendo instalados a medida que se vão assentando os
anéis, repousando cada degrau entre dois anéis consecutivos. Esses degraus podem ser de
ferro galvanizado, mas como este material sofre desgaste corrosivo com o tempo, é
preferível degraus em ligas de alumínio ou mesmo emprego de escadas portáteis, estas mais
viáveis para poços de visita com profundidades inferiores a 3,00 metros, em substituição a
escada fixa.
A chaminé será executada obedecendo a sistemática similar recomendada para o balão,
sendo que essa será encimada por um tampão padronizado no modelo pela concessionária
exploradora dos serviços de drenagem, em ferro fundido. Na construção da chaminé
normalmente são empregados anéis pré-moldados com altura de 0,30m por 0,60m de
diâmetro e também anéis de menor altura, 0,15 ou 0,08m, para sua complementação. É
recomendada a construção de uma chaminé com altura mínima de 0,30m para facilitar a
construção ou reposição da pavimentação do leito viário.
Todas as peças terão obrigatoriamente que assentarem-se sobre argamassa de cimento e
areia a 1:3 em volume, sendo o excesso retirado e a junta alisada a colher de pedreiro e,
27
para melhor acabamento, suas paredes cimentadas com nata de cimento dosada com
impermeabilizante (1:12 na água).
Figura VII.5 - Modelo de degrau
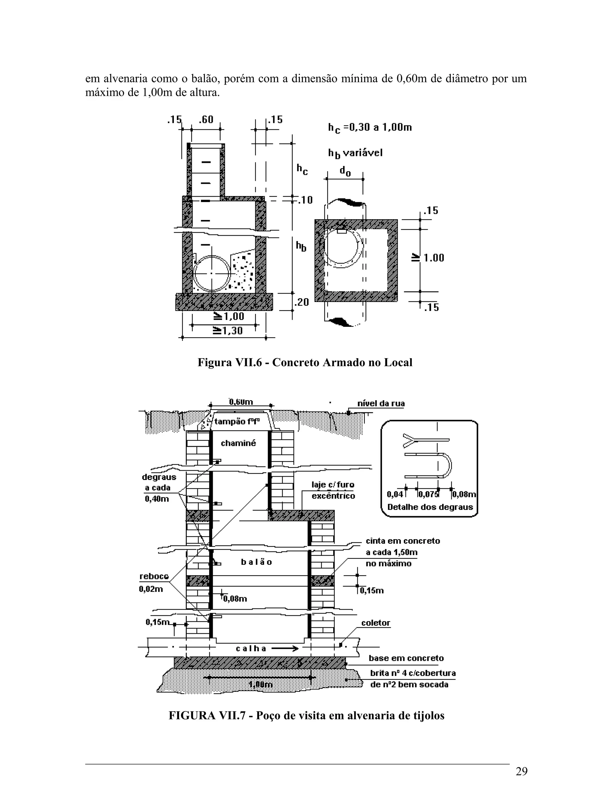
Concreto Armado no Local(Figura VII.6)
São de ocorrência mais freqüente para canalizações com diâmetro superior a 400 mm ou
em situações onde não haja condições para obtenção de pré-moldados. Normalmente
apenas o balão é armado no local, em concreto com dosagem mínima de cimento de 300
Kg/m³, podendo ter secção horizontal circular ou prismática, ficando a chaminé para ser
feita com anéis pré-moldados, como citado no item anterior. Quanto ao acabamento, piso,
base, calhas e outros serviços, segue a mesma orientação recomendada para os PVs pré-
moldados.
Alvenaria (Figura VII.7)
A ocorrência de poços desta natureza decorre, na maioria das vezes, da dificuldade no local
da obra, da obtenção de concreto, principalmente para confecção de balão, ou mesmo de
cimento, implicando, de alguma forma, em estruturas mais viáveis, inclusive
economicamente.
As paredes terão espessura mínima de 0,20m, em tijolos maciços de uma vez, rejuntados, e
rebocadas com argamassa de cimento e areia de 1:3 em volume, dosada com
impermeabilizante, alisadas com colher de pedreiro. Externamente as paredes dever receber
uma camada de chapisco e, se necessário, reboco impermeabilizante.
O balão terá secção circular ou prismática, e será encimado por uma laje com abertura
excêntrica, em concreto armado fundido no local, com espessura mínima de 0,10m, a 300
kg de cimentoo por metro cúbico de concreto.
Na existência da chaminé, esta poderá ser executada em anéis pré-moldados, ou também,
28
em alvenaria como o balão, porém com a dimensão mínima de 0,60m de diâmetro por um
máximo de 1,00m de altura.
Figura VII.6 - Concreto Armado no Local
FIGURA VII.7 - Poço de visita em alvenaria de tijolos
29
TÉCNICAS DE DIMENSIONAMENTO
PROJETO HIDRÁULICO
Dados Básicos :
Para que o projetista tenha condições de optar por uma concepção de rede de galerias e
efetuar o cálculo do sistema, faz-se necessário que inicialmente o mesmo tenha em mãos
uma série de levantamentos de dados inerentes a área em estudo. Este material basicamente
é constituído dos seguintes documentos:
- planta da área a ser drenada na escala 1:500 ou 1:1000, com curvas de níveis desenhadas
de 0,5 em 0,5 ou de 1,0 em 1,0 m
- mapa geral da bacia em escalas de 1:5000 ou 1:10000
- planta da área com indicações dos arruamentos existentes e projetados em escalas de
1:500 ou 1:1000
- secções transversais típicas e perfis longitudinais, bem como o ipo de pavimentação, das
ruas e avenidas;
- informações geotécnicas da área e do lençol freático;
- locação dos pontos de lançamento final;
- cadastramento de outros sistemas existentes;
- curvas de intensidade/duração/frequência para chuvas na região;
- outras informações que o projetista julgar necessárias.
Informações adicionais sempre são pedidas após os projetistas visitarem o local da obra.
Elaboração de Projeto
A melhor alternativa de projeto é resultado de uma série de análises preliminares que
antecedem aos cálculos definitivos para dimensionamento da rede coletora a ser
implantada. Em um bom projeto nunca é facultado o memorial justificativo da concepção
adotada, pois ele é resultado da convicção de certeza do projetista de que a hipótese é mais
viável técnica e economicamente.
De posse dos dados básicos necessários citados anteriormente, deve-se elaborar diversos
esquemas alternativos e sobre eles questionar as vantagens e desvantagens de cada um,
definindo-se por aquele que se apresentar mais viável no aspecto funcional e de acordo com
os recursos disponíveis. De um modo geral, este trabalho compreende as seguintes etapas:
30
1ª - determinação dos limites da bacia;
2ª - verificação das curvas de precipitação;
3ª - identificação das possíveis pontos de lançamento final;
4ª - desenvolvimento de esquemas alternativos;
5ª - elaboração da previsão de custos do projeto;
6ª - revisão dos dados básicos;
7ª - opção por uma concepção de projeto;
8ª - desenvolvimento dos cálculos definitivos;
9ª - preenchimento das planilhas de cálculo;
10ª - desenho do projeto definitivo ( planta e detalhes );
11ª - elaboração dos quantitativos para orçamento e os cronogramas;
12ª - descrição dos memoriais e especificações da projeto.
Seqüência de Cálculos
A metodologia de um projeto de micro-drenagem pode variar de equipe de projetistas, mas,
de um modo geral, pode-se academicamente sugerir o procedimento exposto a seguir.
De posse da planta geral em escala conveniente ( 1:500 ou 1:1000 ), com curvas de nível
desenhadas de metro em metro, além dos arruamentos e informações sobre toda a
infraestrutura pública existente na área, inicia-se o estudo para a concepção definitiva de
projeto. A seguir procede-se o cálculo da rede de acordo com a sequência:
1º- identifica-se os diversos divisores naturais de água delimitando-se todas as bacias e sub-
bacias da área, em função dos pontos de lançamento final ( sugestão : traço + dois pontos);
2º- indentifica-se o sentido de escoamento nas sarjetas (com pequenas setas);
3º- identifica-se as áreas de contribuição para cada trecho de sarjeta ( traço + ponto);
4º- define-se as posições das primeiras bocas coletoras e as demais de jusante (pequenos
retângulos);
5º- lança-se um traçado de galerias ( linha dupla descontínua ) e loca-se os poços de visita
onde se fizerem necessários (pequenos círculos);
6º- estuda-se o posicionamentodas tubulações de ligação (traço descontínuo) e as possíveis
caixas de ligação ( pequenos quadrados);
7º- numeram-se os poços de visita no sentido crescente das vazões (algarismos arábicos);
8º- identificam-se as cotas do terreno em cada poço de visita;
9º- mede-se a extensão de cada trecho;
10º- denominam-se as áreas de contribuição para cada trecho (An);
11º- define-se o coeficiente (ou coeficientes) de escoamento superficial em função da
ocupação atual e futura da área, para cada área de contribuição.
Neste ponto tem-se na planta todos os dados necessários identificados e/ou determinados,
para o cálculo de cada trecho de galeria (diâmetro "D", declividade "I" e profundidade "h").
Recomendações Usuais para Projetos
Cada projetista logicamente tem seu modelo de concepção para um trabalho dentro das
normas existentes e do seu ponto de vista. Isto torna-se mais notável quando se trata de
precauções próprias quanto a segurança e eficiência do projeto implantado. Dentre os
procedimentos práticos freqüentemente usados em um cálculo de sistemas de galerias
pluviais podem ser citados:
31
a) em cada poço de visita nenhuma galeria de entrada poderá ter seu topo em cota inferior
ao topo da galeria de saída;
b) no interior de cada poço de visita admite-se uma queda mínima de 0,10 m na linha
piezométrica;
c) os poços de visita não deverão receber mais que quatro condutos de ligação;
d) as caixas de ligação não deverão receber mais que dois condutos de ligação;
e) no cálculo das capacidades dos condutos deve-se admitir um coeficiente de rugosidade
20% maior que o teórico aplicado para o revestimento empregado nas paredes internas das
galerias;
f) os condutos de ligação deverão ser executados com uma declividade mínima de 1%.
OBS.: Quando uma determinada caixa de ligação destinar-se a reunir tubos de ligação
provenientes das bocas coletoras para em seguida encaminhar a vazão reunida para o poço
de visita mais próximo, através de uma outra tubulação de ligação, esta caixa poderá
receber até três afluentes de bocas coletoras.
Redes de microdrenagem
A microdrenagem urbana é definida pelo sistema de condutos pluviais no loteamento ou na
rede primária urbana.
O dimensionamento de uma rede de pluviais é baseado nas seguintes etapas:
• Subdivisão em áreas de drenagem e traçado;
• Determinação das vazões que afluem à rede de condutos;
• Dimensionamento da rede de condutos.
Dados necessários:
Os principais dados necessários à elaboração de um projeto de rede pluvial de
microdrenagem são os seguintes:
Mapas: Os principais mapas necessários aos estudos são os seguintes:
• Mapa de situação da localização da área dentro do município;
• Planta geral da bacia contribuinte: escalas 1:5.000 ou 1:10.000, juntamente
com a localização da área de drenagem. No caso de não existir planta plani-
32
altimétrica da bacia, deve ser delimitado o divisor topográfico por poligonal
nivelada;
• Planta plani-altimétrica da área do projeto na escala 1:2.000 ou 1:1.000, com
pontos cotados nas esquinas e em pontos notáveis.
Levantamento Topográfico: o nivelamento geométrico em todas as esquinas,
mudança de direção e mudança de greides das vias públicas;
Cadastro: de redes existentes de esgotos pluviais ou de outros serviços que possam
interferir na área de projeto;
Urbanização: devem ser identificados elementos que permitam avaliar como é a
urbanização da bacia contribuinte, na situação atual e prevista no plano diretor, como,
por exemplo, tipo de ocupação das áreas (residências, comércio, praças, etc.),
porcentagem de área impermeável projetada de ocupação dos lotes, ocupação e
recobrimento do solo nas áreas não urbanizadas pertencentes à bacia.
Dados relativos ao curso de água receptor: essas informações devem
conter indicações sobre o nível de água máximo do canal/arroio que irá receber o
lançamento final, levantamento topográfico do local de descarga final.
Critérios para o traçado da rede pluvial
A rede coletora deve ser lançada em planta baixa (escala 1:2.000 ou 1:1.000), de
acordo com as condições naturais do escoamento superficial. Algumas regras básicas
para o traçado da rede são as seguintes:
Os divisores de bacias e as áreas contribuintes a cada trecho deverão ficar
convenientemente assinalados nas plantas;
Os trechos em que o escoamento se dê apenas pelas sarjetas devem ficar
identificados por meio de setas;
33
As redes de microdrenagem pluvial, sempre que possível, deverão ser lançadas sob
os passeios;
O sistema coletor, em uma determinada via, poderá constar de uma rede única,
recebendo ligações de bocas-de-lobo de ambos os passeios;
A solução mais adequada, em cada rua, é estabelecida, economicamente, em
função da sua largura e condições de pavimentação;
O amortecimento do escoamento é realizado nas áreas baixas junto a drenagem
principal. Procura-se localizar a área de amortecimento preferencialmente junto à saída
do sistema projetado;
Preferencialmente, os sistemas de detenções devem estar integrados de forma
paisagística na área, neste caso, poderá ser necessário utilizar detenções ou
retenções internas ao parcelamento na forma de lagos permanentes ou secos
integrados ao uso previsto para a área;
O projeto deve estabelecer a área máxima impermeável de cada lote do
parcelamento, além das áreas comuns.
Componentes hidráulicos do sistema de redes de microdrenagem
pluvial
Bocas-de-Lobo: as bocas-de-lobo devem ser localizadas de maneira a conduzirem,
adequadamente, as vazões superficiais para a rede de condutos. Nos pontos mais baixos
do sistema viário, deverão ser, necessariamente, colocadas bocas-de-lobo com vistas a se
evitar a criação de zonas mortas com alagamentos e águas paradas.
Poços de Visita: os poços de visita devem atender às mudanças de direção, de
diâmetro e de declividade à ligação das bocas-de-lobo, ao entroncamento dos
diversos trechos e ao afastamento máximo admissível.
Canalização circular: o diâmetro mínimo das galerias de seção circular deve ser de
34
0,30m. Os diâmetros comerciais correntes são: 0,30; 0,40; 0,50; 0,60; 0,80; 1,00;
1,20 e 1,50m. Alguns dos critérios básicos de projeto são os seguintes:
• As redes de microdrenagem pluvial são projetadas para funcionamento a
seção plena com a vazão de projeto. A velocidade máxima admissível
determina-
se em função do material a ser empregado na rede. Para tubo de concreto, a
velocidade máxima admissível é de 4,0m/s e a velocidade mínima é de 0,80 m/s;
• O recobrimento mínimo da rede de drenagem pluvial deve ser de 1,00m,
quando forem empregadas tubulações sem estrutura especial. Quando, por
condições topográficas, forem utilizados recobrimentos menores, as canalizações
deverão ser estruturalmente projetadas ou protegidas por estruturas especiais;
Disposição dos componentes;
Traçado preliminar: através de critérios usuais de drenagem urbana, devem ser
estudados diversos traçados da rede de microdrenagem, considerando-se os
dados topográficos existentes e o pré-dimensionamento hidrológico e hidráulico. A
definição da concepção inicial é mais importante para a economia global do sistema do
que os estudos posteriores de detalhamento do projeto, de especificação de materiais, etc.
Coletores: existem duas hipóteses para a locação da rede coletora de águas pluviais: (i)
no passeio, a 1/3 da guia (meio-fio) e (ii) a menos utilizada, sob o eixo da via pública
Bocas-de-lobo: a locação das bocas-de-lobo deve considerar as seguintes
recomendações:
(i) serão locadas em ambos os lados da rua, quando a saturação da sarjeta assim o
exigir ou quando forem ultrapassadas as suas capacidades de engolimento;
(ii) serão locadas nos pontos baixos da quadra;
35
(iii) (iii) a localização das bocas-de-lobo deve ser determinada através do
cálculo da capacidade hidráulica da sarjeta, considerando-se uma altura do meio-fio
de 0,15 m e uma largura da lâmina d’água variável (estipulada caso a caso, nas
diretrizes de projeto fornecidas pela equipe de acompanhamento da prefeitura);
(iv) a melhor solução para a instalação de bocas-de-lobo é que esta seja feita em
pontos pouco a montante de cada faixa de cruzamento usada pelos pedestres, junto às
esquinas;
(v) não é conveniente a sua localização junto ao vértice de ângulo de interseção das
sarjetas de duas ruas convergentes, porque os pedestres, para cruzarem uma rua,
teriam que saltar a torrente num trecho de máxima vazão superficial e,
também, porque as torrentes convergentes pelas diferentes sarjetas teriam,
como resultante, um escoamento de velocidade em sentido contrário ao da afluência
para o interior da boca-de-lobo.
Poços de visita e de queda: o poço de visita tem a função primordial de permitir o
acesso às canalizações para limpeza e inspeção, de modo que se possam mantê-las em
bom estado de funcionamento. Sua locação é sugerida nos pontos de mudanças de
direção, cruzamento de ruas (reunião de vários coletores), mudanças de declividade e
mudança de diâmetro. O espaçamento recomendado para os poços de visita é de 50 m.
Dimensionamento hidráulico da rede de condutos
Capacidade de condução hidráulica de ruas e sarjetas
As águas, ao caírem nas áreas urbanas, escoam, inicialmente, pelos terrenos até
chegarem às ruas. Sendo as ruas abauladas (declividade transversal) e tendo
inclinação longitudinal, as águas escoarão rapidamente para as sarjetas e, destas,
ruas abaixo
O dimensionamento hidráulico pode ser obtido pela equação de Manning
transformada:
36
Q = A.Rh 2/ 3
. S 1/2
n
Onde: Q = vazão(m3/s)
A é a área de seção transversal da sarjeta(m2)
Rh é o raio hidráuico(m)
S é a declividade do fundo(m/m)
n é o coeficiente de rugosidade de Manning
TABELA – COEFICIENTE DE RUGOSIDADE DE MANNING
CARACTERÍSTICAS
n
Canais revestidos:
Canais retilíneos com grama de até 15 cm de altura 0,30 - 0,40
Canais retilíneos com capins de até 30 cm de altura 0,30 - 0,060
Galerias de concreto:
Pré-moldado com bom acabamento 0,011 - 0,014
Moldado no local com formas metálicas simples 0,012 - 0,014
Moldado no local com formas de madeira 0, 015 - 0,020
Sarjetas:
Asfalto suave 0,013
Asfalto rugoso 0,016
Concreto suave com pavimento de asfalto 0,014
Concreto rugoso com pavimento de asfalto 0,015
Pavimento de concreto 0,014 - 0,017
37
Pedras 0,017
Para outros tipos de materiais pode-se recorrer às tabelas e fotografias
apresentadas por Chow (1959), no livro Open channel Hydraulics Para a
via pública, o coeficiente de rugosidade, em geral, é de 0,017.
Exemplo - Calcule a vazão máxima que escoa pela sarjeta com uma altura de 15 cm e
por toda a rua, segundo os parâmetros normais de via pública. Para uma declividade
longitudinal de 0,005 m/m, quais são as vazões?
Bocas-de-Lobo
Tipos: as bocas coletoras (bocas-de-lobo) podem ser classificadas em três grupos
principais: bocas ou ralos de guias; ralos de sarjetas (grelhas); ralos combinados. Cada
tipo inclui variações quanto às depressões (rebaixamento) em relação ao nível da
superfície normal do perímetro e ao seu número (simples ou múltipla) (Figura 5.5).
Capacidade de engolimento: quando a água acumula sobre a boca-de-lobo, gera
uma lâmina com altura menor do que a abertura da guia. Esse tipo de boca-de-lobo pode
ser considerado um vertedor, e a capacidade de engolimento será dada por :
Q = 1,7.L.y 3/2
Onde: Q é a vazão de engolimento (m3
/s); y é a altura de água próxima à
abertura na guia (m); L é o comprimento da soleira (m).
38
Exemplo: Dimensione uma boca-de-lobo para uma vazão de 94 l/s na sarjeta e uma
lâmina de água de 0,10 m.
Solução: como boca-de-lobo de guia
39
Canalizações
O dimensionamento das canalizações que compõem o sistema de redes de
microdrenagem é realizado com base nas equações hidráulicas de movimento uniforme,
como a de Manning (equação 5.2), Chezy e outras.
Exemplo : Determine o diâmetro necessário para escoar a vazão de 94 l/s obtida no
exemplo anterior, considerando a declividade longitudinal da rua igual a 0,001 m/m. O
conduto é de concreto, com n = 0,013.
40
41
REFERÊNCIAS BIBLIOGRÁFICAS:
ABNT - "Normas Técnicas e Especificações".
AZEVEDO NETTO, J. M.. "Tratamento de Águas de Abasteci mento", Editora da Universidade de São
Paulo, 1966)
AZEVEDO NETTO, J. M., ALVAREZ, G. A. - "Manual de Hidráulica", Ed. Edgard Blucher Ltda, 7ª Edição,
São Paulo, 1982.
AZEVEDO NETTO, J. M., CAMPOS BOTELHO, M. H.. "Manual de Saneamento de Cidades e
Edificações", Editora Pini, 1991.
BOTELHO, M. H. C. - "Águas de chuva - Engenharia das Águas de Chuva nas Cidades", Ed. Edgard Blucher
Ltda, São Paulo, 1985.
CHOW, VEN TE, - " Handbook of Applied Hydrology", McGraw-Hill, New York,1964.
DACACH, N. G. - "Sistemas Urbanos de Água", LTC Editora S.A., 2ª Edição, Rio de Janeiro, 1979.
DACACH, N. G. - "Sistemas Urbanos de Esgotos", Ed. Guanabara Dois, Rio de Janeiro, 1984.
FUGITA, O. e outros - "Drenagem Urbana - Manual de Projeto", DAEE/CETESB, 1980.
GARCEZ, L. N. - "Elementos de Engenharia Hidráulica e Sanitária", Ed. Edgard Blucher Ltda, São Paulo,
1969.
HAMMER, M. J. "Sistemas de Abastecimento de Água e Esgotos", LTC Editora S.A., Rio de Janeiro, 1979.
HWANG, N. H. C. - "Fundamentos de Sistemas de Engenharia Hidráulica", Prentice-Hall do Brasil, Rio de
Janeiro, 1984.
LENCASTRE, A. - "Hidráulica Geral", Edição Luso-Brasileira da HIDRO - PROJECTO, Lisboa, 1983.
MACINTYRE, A. J. - "Bombas e Instalações de Bombeamento", Ed.Guanabara Dois, Rio de Janeiro, 1980.
MEDEIROS Fº, C. F. - "Micro-Drenagem: Estudo para Dimensionamento de Pequenos Projetos",
DEC/CCT/UFPB, Campina Grande, Pb, 1985.
NEVES, E. T. - "Curso de Hidráulica", Editora Globo, 4ª Edição, Porto Alegre,1974.
NINA, A. D. - "Construção de Redes de Esgotos Sanitários", CETESB, São Paulo, 1975.
PIMENTA, C. F. - "Curso de Hidráulica Geral", Centro Tecnológico de Hidráulica, 3ª Ed., São Paulo, 1977.
PINTO, N. L. S. [ e outros ] - "Hidrologia Básica", Ed. Edgard Blucher Ltda, São Paulo, 1976.
SILVESTRE, P. - "Hidráulica Geral", LTC Editora S.A., Rio de Janeiro, 1973.
STEEL, E. W. - " Abastecimento de Água - Sistema de Esgotos", Ed. Ao Livro Técnico S.A., Rio de Janeiro,
1966.
42
WILKEN, P. S. - "Engenharia de Drenagem Superficial", CETESB, São Paulo,1978.
W.P.C.F. - "Manual de Prática, Num. FD-4, Diseño de Estaciones de Bombeo de Aguas Residuales y Aguas
Pluviales", Washington, 1984.
W.P.C.F. - "Manual of Practice, Nº 9, Design and Construction of Sanitary and Storm Sewers", Reed.,
Washington, 1986.
43

Apostila alunos dreanagem

  • 1.
    DRENAGEM URBANA Material didáticopara Drenagem Urbana. Socorro Lamego 1
  • 2.
    I - SISTEMASDE DRENAGEM PLUVIAL 1. Introdução Os sistemas de drenagem são classificados de acordo com suas dimensões, em sistemas de microdrenagem, também denominados de sistemas iniciais de drenagem, e de macrodrenagem. A microdrenagem inclui a coleta e afastamento das águas superficiais ou subterrâneas através de pequenas e médias galerias, fazendo ainda parte do sistema todos os componentes do projeto para que tal ocorra. A macrodrenagem inclui, além da microdrenagem, as galerias de grande porte ( D > 1,5m ) e os corpos receptores tais como canais e rios canalizados. I.2. Terminologia Básica Um sistema de drenagem de águas pluviais é composto de uma série de unidades e dispositivos hidráulicos para os quais existe uma terminologia própria e cujos elementos mais freqüentes são conceituados a seguir. Greide - é uma linha do perfil correspondente ao eixo longitudinal da superfície livre da via pública. Guia - também conhecida como meio-fio, é a faixa longitudinal de separação do passeio com o leito viário, constituindo-se geralmente de peças de granito argamassadas. Sarjeta - é o canal longitudinal, em geral triangular, situado entre a guia e a pista de rolamento, destinado a coletar e conduzir as águas de escoamento superficial até os pontos de coleta (Figura I.1). Sarjetões - canal de seção triangular situado nos pontos baixos ou nos encontros dos leitos viários das vias públicas, destinados a conectar sarjetas ou encaminhar efluentes destas para os pontos de coleta (Figura I.2). Bocas coletoras - também denominadas de bocas de lobo. São estruturas hidráulicas para captação das águas superficiais transportadas pelas sarjetas e sarjetões; em geral situam-se sob o passeio ou sob a sarjeta (Figura I.3). 2
  • 3.
    Figura I.1 -Modelo de sarjeta Figura I.2 - Sarjetão típico em paralelepípedos Galerias - são condutos destinados ao transporte das águas captadas nas bocas coletoras até os pontos de lançamento; tecnicamente denominada de galerias tendo em vista serem construídas com diâmetro variando de 600mm a 1500mm. Condutos de ligação - também denominados de tubulações de ligação, são destinados ao transporte da água coletada nas bocas coletoras até às galerias pluviais (Figura I.3). Poços de visita - são câmaras visitáveis situadas em pontos previamente determinados, destinadas a permitir a inspeção e limpeza dos condutos subterrâneos (Figura I.4). Trecho de galeria - é a parte da galeria situada entre dois poços de visita consecutivos. Caixas de ligação - também denominadas de caixas mortas, são caixas de alvenaria subterrâneas não visitáveis, com finalidade de reunir condutos de ligação ou estes à galeria (Figura I.5). Bacias de drenagem - é a área contribuinte para a seção em estudo. Tempo de concentração - é o menor tempo necessário para que toda a bacia de drenagem possa contribuir para a secção em estudo, durante uma precipitação torrencial. Tempo de recorrência - intervalo de tempo onde determinada chuva de projeto é igualada ou suplantada estatisticamente; também conhecido como período de recorrência ou de retorno. 3
  • 4.
    Figura I.3 -Boca coletora sob passeio Figura I.4 - Poço de visita típico Chuva intensa - precipitação com período de retorno de 100 anos. Chuva freqüente - precipitação com período de retorno de até 10 anos. Chuva torrencial - precipitação uniforme sobre toda a bacia. Pluviômetro - instrumento que mede a totalidade da precipitação pela leitura do líquido acumulado em um recipiente graduado - proveta. Pluviógrafo - instrumento que registra em papel milimetrado especialmente preparado, a evolução da quantidade de água que cai ao longo da precipitação, ou seja, mede a intensidade de chuva. 4
  • 5.
    .2. Objetivos Os sistemasde drenagem urbana são essencialmente sistemas preventivos de inundações, principalmente nas áreas mais baixas das comunidades sujeitas a alagamentos ou marginais de cursos naturais de água. É evidente que no campo da drenagem, os problemas agravam- se em função da urbanização desordenada. Todo plano urbanístico de expansão deve conter em seu bojo um plano de drenagem urbana, visando delimitar as áreas mais baixas potencialmente inundáveis a fim de diagnosticar a viabilidade ou não da ocupação destas áreas de ponto de vista de expansão dos serviços públicos. Um adequado sistema de drenagem, quer de águas superficiais ou subterrâneas, onde esta drenagem for viável, proporcionará uma série de benefícios, tais como: - desenvolvimento do sistema viário; - redução de gastos com manutenção das vias públicas; - valorização das propriedades existentes na área beneficiada; - escoamento rápido das águas superficiais, facilitando o tráfego por ocasião das precipitações; 3. Drenagem no Brasil No Brasil, institucionalmente, a infra-estrutura de microdrenagem é reconhecida como da competência dos governos municipais que devem ter total responsabilidade para definir as ações no setor, ampliando-se esta competência em direção aos governos estaduais, na medida em que crescem de relevância as questões de macrodrenagem, cuja referência fundamental para o planejamento são as bacias hidrográficas. Isto é, deve ser de competência da Administração Municipal - a Prefeitura, os serviços de infra-estrutura urbana básica relativos à microdrenagem e serviços correlatos - incluindo-se terraplenagens, guias, sarjetas, galerias de águas pluviais, pavimentações e obras de 5
  • 6.
    contenção de encostas,para minimização de risco à ocupação urbana. De um modo geral nas cidades brasileiras, a infra-estrutura pública em relação a drenagem, como em outros serviços básicos, apresenta-se como insuficiente. PARÂMETROS HIDROLÓGICOS: CHUVAS – CHUVA DE PROJETO A precipitação observada é uma sequência cronológica de eventos de chuva que podem ser caracterizados, um a um, pelas seguintes variáveis (unidades usuais entre parênteses): Lâmina precipitada P (mm); Duração D (min); Intensidade média precipitada iméd = P/D (mm/h); Lâmina máxima Pmáx (mm) da sequência de intervalos de tempo t que discretizam D; Intensidade máxima imáx = Pmáx / t (mm/h); Posição de Pmáx ou imáx dentro da duração D (entre 0 e 1, do início ao fim de D). Tipos de Chuva São três os tipos de chuvas para a Hidrologia: chuvas convectivas, chuvas orográficas e chuvas frontais As convectivas - São características deste tipo de precipitação a curta duração, alta intensidade, freqüentes descargas elétricas e abrangência de pequenas áreas. As chuvas orográficas - Caracterizam-se pela longa duração e baixa intensidade, abrangendo grandes áreas por várias horas continuamente e sem descargas elétricas As chuvas frontais - são mais fortes que as orográficas abrangendo, porém, como aquelas, grandes áreas, precipitando-se intermitentemente com breves intervalos de estiagem e com presença de violentas descargas elétricas. 6
  • 7.
    Medição de Chuva Doisaparelhos são comumente empregados nas medições das chuvas. São eles o pluviômetro e o pluviógrafo. No pluviômetro é lido a altura total de água precipitada, ou seja, a lâmina acumulada durante a precipitação, sendo que seus registros são sempre fornecidos em milímetros por dia ou em milímetros por chuva, com anotação da mesma dependendo da capacidade e do capricho do operador (Figura II.1). O pluviógrafo é mais encontrado nas estações meteorológicas propriamente ditas e registra a intensidade de precipitação, ou seja, a variação da altura de chuva com o tempo. Este aparelho registra em uma fita de papel em modelo apropriado, simultaneamente, a quantidade e a duração da precipitação. A sua operação mais complicada e dispendiosa e o próprio custo de aquisição do aparelho, tornam seu uso restrito, embora seus resultados sejam bem mais importantes hidrologicamente (Figura II.2). Figura II.1 - Instalação de um pluviômetro 7
  • 8.
    Figura II.2(a) -Pluviógrafo: esquema de funcionamento Para projetos de galerias pluviais devem ser conhecidos as variações da altura de chuva com o tempo. Isto só é possível através de medições via pluviógrafos. Um pluviógrafo é constituído de duas unidades, a saber: elemento receptor e elemento registrador. O receptor é semelhante ao de um pluviômetro comum diferindo, apenas, quanto a superfície receptora que é de 200cm2, ou seja, a metade da área do pluviômetro. O elemento registrador consta de um cilindro oco, dentro do qual fica instalado um equipamento de relojoaria que faz girar um pequeno carretel situado sob o fundo do cilindro. Este cilindro gira uma volta completa em 24 horas, o que permite a mudança diária do papel com os registros de precipitações ocorridos, bem como o arquivamento contínuo para possíveis consultas futuras dos dados registrados. Entre os vários modelos conhecidos, o mais empregado no Brasil é o de Hellmann-Fuess (Figura II.3). 8
  • 9.
    Figura II.2(b) -Pluviógrafo: esquema de instalação Figura II.3 - Esquema do pluviógrafo de Hellmann-Fuess Durante uma precipitação sobre o receptor a água escorre por um funil metálico 2, até o cilindro de acumulação 3. Neste cilindro encontra-se instalado um flutuador 4 ligado por uma haste vertical 6 a um suporte horizontal 9, que por sua vez possui em sua extremidade uma pena 8 que imprime sobre o papel do cilindro de gravação 5 a altura acumulada de água no cilindro de acumulação 3. Deste último, também parte um sifão 11 que servirá para 9
  • 10.
    esgotamento da águaquando esta atingir uma altura máxima, despejando o volume sifonado em um vasilhame 10 localizado na parte inferior da instalação. Essa altura máxima é função da capacidade de registro vertical no papel, ou seja, quando a pena atinge a margem limite do papel, imediatamente ocorre o esgotamento, possibilitando que a pena volte a margem inicial continuando o registro acumulado. Intensidade de Chuva É a quantidade de chuva por unidade tempo para um período de recorrência e duração previstos. Sua determinação, em geral, é feita através de análise de curvas que relacionam intensidade/duração/freqüência, elaboradas a partir de dados pluviográficos anotados ao longo de vários anos de observações que antecedem ao período de determinação de cada chuva. Para localidades onde ainda não foi definida ou estudada a relação citada, o procedimento prático é adotar-se, com as devidas reservas, equações já determinadas para regiões similares climatologicamente. Equações de Chuva Expressões Típicas As equações de chuva, que são expressões empíricas das curvas intensidade/duração/freqüência, apresentam-se normalmente nas seguintes formas: 1) i = a / ( t + b ), 2) i = c / tm , 3) i = a .T n / ( t + b )r , onde i - intensidade média em milímetros por minutos ou milímetros por hora; t - tempo de duração da chuva em minutos; T - tempo de recorrência em anos; a, b, c, d, e, m, n e r - parâmetros definidos a partir das observações básicas para elaboração da equação. Exemplos Brasileiros a) Cidade de São Paulo (Engos. A. G. Occhipintt e P. M. Santos) - para duração de até 60 min i = A/(t + 15)r para A = 27,96.T 0,112 e r = 0,86T -0,0114 , i - mm/min e t - min - para durações superiores i = 42,23.T 0,15 /t 0,82 , i - mm/h e t - min; b) Cidade do Rio de Janeiro (Engº Ulisses M. A. Alcântara) i = 1239.T 0,15 /(t+20) 0,74 , i - mm/h; c) Curitiba (Prof. P. V. Parigot de Souza) i = 99,154.T 0,217 /(t+26) 1,15 , i - mm/min; 10
  • 11.
    d) João Pessoa(Engº J. A. Souza) i = 369,409.T 0,15 /(t+5) 0,568 , i - mm/h (Figura II.4); e) Sertão Oriental Nordestino ( Projeto Sertanejo - 19 ) i = 3609,11.T 0,12 /(t + 30) 0,95 , i - mm/h (Figura II.5); f) Porto Alegre (Engº C. Meneses e R. S. Noronha) i = a/(t+b), i - mm/min e com os valores de "a" e "b" variando com o tempo de recorrência pretendido: T (anos) a b 5 23 2,4 10 29 3,9 15 48 8,6 20 95 16,5 A equação IDF(Intensidade/Duraçào/Frequencia) recomendada está apresentada abaixo e foi determinada durante a elaboração do Plano Diretor de Drenagem Urbana do município, do qual este faz parte. i = 1194,273 T 0,1738 (60 + 10) 0,7457 Onde: i é a intensidade da chuva em mmh-1 , T é o período de retorno do evento em anos e t é a duração em minutos. Exemplo 2.1 Para o dimensionamento de uma rede de microdrenagem numa área residencial, determinar a intensidade e o volume pluviométrico de uma precipitação com duração de 1 hora. DEFLÚVIO SUPERFICIAL DIRETO Denomina-se deflúvio superficial direto o volume de água que escoa da superfície de uma determinada área devido a ocorrência de uma chuva torrencial sobre aquela área. Para determinação desse volume, vários métodos são conhecidos, os quais podem ser classificados nos grupos abaixo 11
  • 12.
    a) medições diretas b)processos comparativos c) métodos analíticos d) fórmulas empíricas As medições diretas e processos comparativos restringem-se mais para determinações de vazões em cursos de água perenes tais como córregos, pequenos canais, etc, ficando praticamente sem utilização em projetos de micro-drenagem em geral. As fórmulas empíricas são resultantes de equacionamento de um grande número de observações sendo, por isso, bastante confiáveis, mas de utilização restrita a localidade de origem das observações ou regiões similares. Procedimentos mais freqüentemente empregados, tanto para obras de micro-drenagem como para de macro-drenagem, são os de natureza analítica, visto que trazem na sua definição estudos matemáticos/empíricos que promovem maior credibilidade aos seus resultados. Diante do exposto os métodos analíticos é que serão objeto de estudos a seguir. Métodos Analíticos Como métodos analíticos são conhecidos os três seguintes: Método Racional, Método do Hidrograma Unitário e a Análise Estatística. Para obras de micro-drenagem e método mais empregado em todo o mundo ocidental é o Método Racional, por ser o de mais fácil manipulação, mas, devido a sua natureza simplificada da tradução do fenômeno, não é recomendável para o cálculo de contribuições de bacias com áreas superiores a 1,0 km2 Para bacias de drenagem com área superior a 1,0 km2 justifica-se uma análise mais acurada, pois a simplificação dos cálculos poderá acarretar obras super ou sub-dimensionadas do ponto de vista hidráulico. Recomenda-se que para obras de drenagem de áreas de contribuição superiores a 100 hectares seja utilizado o Hidrograma Unitário Sintético, desde que a elaboração do mesmo seja baseada em dados obtidos através de análises da área em estudo. A Análise Estatística é recomendada para cursos de águas de maior porte, onde a área de contribuição seja superior a 20 km2, servindo essencialmente para previsão dos volumes de cheias. Sendo assim conclui-se que o Método Racional deva ser objeto de estudo mais detalhado a seguir, por ser este o indicado para projetos de micro-drenagem em geral. 12
  • 13.
    Método Racional Fórmula O MétodoRacional relaciona axiomaticamente a precipitação com o deflúvio, considerando as principais características da bacia, tais como área, permeabilidade, forma, declividade média, etc, sendo a vazão de dimensionamento calculada pela seguinte expressão: Q = 166,67. C. i. A, onde: Q - deflúvio superficial direto em litros por segundo; C - coeficiente de escoamento superficial; i - intensidade média de chuva para a precipitação ocorrida durante o tempo de concentração da bacia em estudo, em milímetro por minuto; A - área da bacia de contribuição em hectares. Tempo de Concentração Conceitua-se tempo de concentração como o espaço de tempo decorrido desde o início da precipitação torrencial sobre a bacia até o instante em que toda esta bacia passa a contribuir para o escoamento na secção de jusante da mesma. Em um sistema de galerias corresponde a duas parcelas distintas, sendo a primeira denominada de "tempo de entrada", ou seja, tempo necessário para que as contribuições superficiais atinjam a secção inicial de projeto, enquanto que a segunda corresponde ao tempo gasto pelo escoamento através dos condutos, a partir do instante em que toda a bacia passa a contribuir para a secção em estudo. Para o escoamento em superfícies, recomenda-se que o tempo de concentração seja estimado conforme a equação mais adequada, a ser selecionada dentre as apresentadas posteriormente. Para a estimativa do tempo de concentração em canais, redes de drenagem, valas, entre outros, deve ser utilizada a equação de Manning, conforme segue: Para o escoamento em superfícies, recomenda-se que o tempo de concentração seja estimado conforme a equação mais adequada, a ser selecionada dentre as apresentadas posteriormente. Para a estimativa do tempo de concentração em canais, redes de drenagem, valas, entre outros, deve ser utilizada a equação de Manning, conforme segue: 13
  • 14.
    V = Rh2/ 3 . S 1/2 n Onde: V é a velocidade do escoamento (m/s); S é a declividade do fundo (m/m); n é o coeficiente de rugosidade de Manning (consultar Tabela 2.5).; Rh é o raio hidráulico (m), calculado conforme a equação: Rh = A Pm Onde: A é a área da seção transversal (m2 ); Pm é o perímetro molhado da seção transversal (m). Determinada a velocidade do escoamento, determina-se o tempo de concentração através da equação: tc = L V Onde: tc é o tempo de concentração(segundos) L é o comprmento do trecho onde ocorre escoamento V é a velocidade do escoamentro(m/s) Intensidade Média das Precipitações No dimensionamento de sistemas de drenagem define-se intensidade de chuva como a quantidade de água caída na unidade de tempo, para uma precipitação com determinado período de retorno e com duração igual ao tempo de concentração. No caso do dimensionamento de galerias a intensidade de chuva é determinada a partir da equação de chuva adotada, onde a duração corresponde ao tempo de concentração e a intensidade a obter-se será a média máxima. A intensidade da precipitação depende dos fatores : 1. Equação IDF(intensidade/duração/freqüência) característica da região 2. Tempo de concentração 14
  • 15.
    Período de Retorno Ossistemas de micro-drenagem, em geral, são dimensionados para frequências de descargas de 2, 5 ou 10 anos, de acordo com as características da ocupação da área que se quer beneficiar. Hidrograma Unitário Sintético O Soil Conservation Service ( SCS,1957) apresentou um método para determinação do hidrograma unitário em que o mesmo é considerado um triângulo como se vê na figura abaixo. A área do triângulo é igual ao volume escoado diretamente na bacia. onde tr = duração da precipitação; tc= tempo de concentração em horas; tp´ = tempo de pico; tp´ + tc = tb (tempo de base); tp = tempo de retardo e tr = duração da precipitação. Exemplos 1. Um determinado trecho de galeria deverá receber e escoar o deflúvio superficial oriundo de uma área de 2,50 ha, banhada por uma chuva intensa e com um coeficiente de escoamento superficial igual a 0,40 . Se o tempo de concentração previsto para o início do trecho é de 16,6 minutos, calcular a vazão de jusante do mesmo sabendo-se que a equação de chuva máxima local é dada pela expressão i = 1840/(t + 167,4), com i-mm/min e t-min. Solução: Q = 166,67 . C. i. A = 166,67 x 0,40 x (1840/16,6+167,4) x 2,5 = 1 667 l/s Assim, Q = 1,67 m3 /s . 2. Encontrar um coeficiente de escoamento adequado para uma área de pequena inclinação, bem urbanizada, onde 22% corresponde a ruas asfaltadas e bem conservadas, 8% de passeios cimentados, 36% de pátios ajardinados e 34% de telhados cerâmicos. Que setor da área urbana parece ser este? Solução: C = 0,22 x 0,95 + 0,08 x 0,80 + 0,36 x 0,10 + 0,34 x 0,90 = 0,615 Assim, C = 0,62, o que equivale a área adjacente ao centro . 15
  • 16.
    Escalas de projeto(fonte, microdrenagem e macrodrenagem) Os sistemas de drenagem pluvial urbano são, normalmente, agrupados em três categorias, de acordo com o seu domínio: 1. fonte, 2. microdrenagem e macrodrenagem. A drenagem na fonte é definida pelo escoamento que ocorre na residência, no edifício, lote, condomínio ou empreendimento individualizado, estacionamentos, área comercial, parques e passeios. O dimensionamento de estruturas de drenagem convencionais como calhas dos telhados, condutores verticais e condutores horizontais deve ser realizado seguindo as recomendações técnicas da NBR 10.844 - Instalações Prediais de Águas Pluviais, do ano vigente. A definição dos sistemas de microdrenagem pode ser realizada a partir de áreas de drenagem utilizadas como referência, como, por exemplo, o limite de 2km2 . Em alguns casos, os sistemas de microdrenagem também podem ser definidos em função do diâmetro das tubulações, como, por exemplo, tratar como rede de microdrenagem toda a tubulação com diâmetro inferior a 1m. A macrodrenagem engloba um conjunto de redes de microdrenagem. Nesse caso, as áreas de drenagem envolvidas são de, pelo menos, 2km2 , ou então, pode ser utilizado como critério o diâmetro das redes de condutos de drenagem acima de um determinado valor. Por exemplo, se na microdrenagem são considerados diâmetros até 1,5m, então a macrodrenagem será composta por condutos com diâmetros ou capacidade superiores. O sistema de macrodrenagem deve ser projetado com capacidade superior ao de microdrenagem, com riscos de acordo com os prejuízos humanos e materiais potenciais. 16
  • 17.
    - SARJETAS Definição : Sãocanais, em geral de seção transversal triangular, situados nas laterais das ruas, entre o leito viário e os passeios para pedestres, destinados a coletar as águas de escoamento superficial e transportá-las até às bocas coletoras. Limitadas verticalmente pela guia do passeio, têm seu leito em concreto ou no mesmo material de revestimento da pista de rolamento (Fig.IV.1). Em vias públicas sem pavimentação é freqüente a utilização de paralelepípedos na confecção do leito das sarjetas, sendo neste caso, conhecidas como linhas d'água. FIG. - Sarjeta triangular Capacidade Teórica Para o cálculo de sarjetas, projetistas brasileiros comumente utilizam a teoria de Manning, onde v = R2/3 . I1/2 . n-1 . A partir desta consideração, o formulário que segue indica as equações para o cálculo da capacidade teórica de cada sarjeta, em função de sua seção típica. Sarjeta em Canal Triangular Definindo como yo- altura máxima de água na guia, wo - largura máxima do espelho d'água, z - (= yo /wo) inverso da declividade transversal, I - inclinação longitudinal da sarjeta (do greide da rua), n - coeficiente de rugosidade de Manning, Q - (= v/A)equação da continuidade, R - raio hidráulico, então, pela Figura IV.2: dQ = v.dA, 17
  • 18.
    Figura - Elementosda dedução da capacidade de uma sarjeta em canal triangular onde, R = y.dx / dx = y, dA = y.dx, v = R 2/3 . I1/2 /n = y 2/3 . I 1/2 /n e dx/dy = z ou dx z.dy, logo, dQ = (y2/3 . I1/2 /n). y.dx ou dQ = (z. y5/3 . I1/2 /n ). dy Integrando a equação de dQ / dy para "y" variando de zero a yo, temos de onde resultando com Qo em m³/s e yo em metros. Para Qo em l/s a equação toma a forma Qo= 375.I 1 /2 . (z/n). yo 8/3 onde Qoé a vazão máxima teórica transportada por uma sarjeta com declividade longitudinal "I" e transversal "1/z". Sarjeta Parcialmente Cheia (Figura IV.3) 18
  • 19.
    A vazão transportadaQ (< Qo) é calculada aplicando-se a fórmula anterior substituindo-se "yo" por "y" ( y < yo ). Figura IV.3 - Sarjeta parcialmente cheia Porção de Sarjeta (Figura IV.4) Situação freqüente em ruas onde sobre a pista de rolamento, em geral paralelepípedos, é lançado um outro tipo de revestimento, normalmente asfáltico. Neste caso calcula-se o valor para sarjeta original e subtrai-se a parcela correspondente a ocupação da seção pelo novo pavimento, resultando: Q1 = Qo - Q', ou Q1 = 0,375.I 1/2 .(z/n).(yo 8/3 - y' 8/3 ) se o extremo do novo pavimento interceptar o espelho da sarjeta original. Figura IV.4 - Porção de sarjeta Valores dos Coeficientes "n" de Manning para Sarjetas Os valores de "n" são estimados em função de material e do acabamento superficial das sarjetas, como apresentado da Tabela IV.1. Tabela IV.1. Coeficientes de Rugosidade de Manning Superfície " n " _______________________________________________ - sarjeta em concreto com bom cabamento 0,012 19
  • 20.
    - revestimento deasfalto a)textura lisa 0,013 b)textura áspera 0,016 - revestimento em argamassa de cimento a) acabamento com espalhadeira 0,014 b) acabamento manual alisado 0,016 c) acabamento manual áspero 0,020 -revestimento com paralelepípedos argamassados 0,020 -sarjetas com pequenas declividades longitudinais (até 2% ) sujeitas a assoreamento "n" correspondente a superfície + 0,002 a 0,005 Exemplos : 1. Determinar a vazão máxima teórica na extremidade de jusante de uma sarjeta situada em uma área com as seguintes características: A = 2,0 ha, i = 700/t2/3 c/ "i" em mm/h e "t" em min, C = 0,40 e tc = 30 min. São dados da sarjeta: I = 0,01 m/m, z = 16 e n = 0,016. Solução: 2. No exemplo anterior verificar a lâmina teórica de água junto a guia. Solução: 3. No mesmo exemplo verificar a velocidade de escoamento. Solução: BOCAS COLETORAS Definição É uma estrutura hidráulica destinada a interceptar as águas pluviais que escoam pela sarjetas para, em seguida, encaminhá-las às canalizações subterrâneas. São também freqüentemente denominadas de bocas-de-lobo. Classificação Dependendo da estrutura, localização ou do funcionamento, as bocas coletoras recebem várias qualificações agrupadas como segue: 20
  • 21.
    a) quanto aa estrutura da abertura ou entrada - simples ou lateral (Figura V.1); - gradeadas com barras longitudinais, transversais ou mistas; - combinada; - múltipla. b) quanto a localização ao longo das sarjetas - intermediárias; - de cruzamentos; - de pontos baixos. c) quanto ao funcionamento - livre; - afogada. Definição: chama-se de depressão um rebaixamento feito na sarjeta junto a entrada da boca coletora, com a finalidade de aumentar a capacidade de captação desta. Comentários: a) quanto à localização - as intermediárias são aquelas que situam-se em pontos ao longo das sarjetas onde a capacidade destas atingem o limite máximo admissível; - as de cruzamento situam-se imediatamente a montante das seções das sarjetas, nas esquinas dos quarteirões, nascendo da necessidade de evitar o prolongamento do escoamento pelo leito dos cruzamentos; - as bocas coletoras de pontos baixos caracterizam-se por receberem contribuições por dois lados, visto que situam-se em pontos onde há a inversão côncava da declividade de rua, ou seja, na confluência de duas sarjetas de um mesmo lado da rua. b) quanto ao funcionamento - dependendo da altura da água na sarjeta e da abertura da boca coletora denomina-se de livre a que funciona como vertedor e de afogada a que funciona como orifício, sendo estas mais freqüentes em pontos baixos e, na maioria, com grades. 21
  • 22.
    Figura V.1 -Boca coletora simples ou lateral Escolha do Tipo de Boca Coletora A indicação do tipo de bola coletora á de essencial importância para a eficiência da drenagem das águas de superfície. Para que esta opção seja correta, deve-se analisar diversos fatores físicos e hidráulicos, tais como ponto de localização, vazão de projeto, declividade transversal e longitudinal da sarjeta e da rua, interferência no tráfego e possibilidades de obstruções. A seguir são citadas, para cada tipo de boca coletora, as situações em que melhor cada uma se adapta. a) Boca coletora lateral (Figura V.1) - pontos intermediários em sarjetas com pequena declividade longitudinal ( I  5%); - presença de materiais obstrutivos nas sarjetas; - vias de tráfego intenso e rápido; - montante dos cruzamentos. b) Boca coletora com grelha (Figura V.2) - sarjetas com limitação de depressão; - inexistência de materiais obstrutivos; - em pontos intermediários em ruas com alta declividade longitudinal (I  10%). c) Combinada (Figura V.3) - pontos baixos de ruas; 22
  • 23.
    - pontos intermediáriosda sarjeta com declividade média entre 5 e 10%; - presença de detritos. d) Múltipla (Figura V.4) - pontos baixos; - sarjetas com grandes vazões. Figura V.2 - Boca coletora com grelha Figura V.3 - Boca coletora combinada Figura V.4 - Boca coletora lateral múltipla Espaçamento entre Bocas Coletoras Consecutivas As bocas coletoras intermediárias são freqüentes em quarteirões com fachadas extensas, ou seja, onde os cruzamentos de ruas consecutivos encontram-se bastante afastados um do outro. 23
  • 24.
    Recomendam, por exemplo,um par de bocas coletoras a cada 500 m2 de rua e outros a cada 40 m de eixo. De um modo geral a frequência de pares de bocas coletoras ocorre a cada 40 a 60 m de extensão de rua ou a cada 300 a 800 m2 de área das mesmas. GALERIAS Definições O termo galeria por si só já é designação de todo conduto subterrâneo com diâmetro equivalente igual ou superior a 400 mm. Tecnicamente sistema de galerias pluviais é um conjunto de bocas coletoras, condutos de ligação, galerias e seus órgãos acessórios tais como poços de visita e caixas de ligação. É a parte subterrânea de um sistema de micro- drenagem. Dimensões O diâmetro mínimo recomendado para galerias pluviais é de 400 mm. No entanto, é comum, principalmente em projetos de baixo custo, o emprego do diâmetro de 300 mm em trechos iniciais e em condutos de ligação. As dimensões das galerias são sempre crescentes para jusante não sendo permitida a redução da seção no trecho seguinte mesmo que, por um acréscimo da declividade natural do terreno, o diâmetro até então indicado passe a funcionar superdimensionado. Declividade A declividade de cada trecho é estabelecida a partir da inclinação média da do terreno ao longo do trecho, do diâmetro equivalente e dos limites de velocidade. Na prática os valores empregados variam normalmente de 0,3% a 4,0%, pois para declividades fora deste intervalo é possível a ocorrência de velocidades incompatíveis com os limites recomendados. Terrenos com declividades superiores a 10% normalmente requerem do projetista soluções específicas para a situação. Em terrenos planos são freqüentes problemas de lançamento final de efluentes. Hidraulicamente tem-se que quanto maior a declividade das galerias maior será a velocidade de escoamento e quanto maior as dimensões transversais dos condutos menor será a declividade necessária. Recobrimento da Canalização Função da estrutura da canalização, adota-se como recobrimento mínimo 1,0 m e como limite máximo 4,0 m. Valores fora do intervalo citado, normalmente requerem tubos ou estruturas reforçadas e análises especiais que justifiquem a opção do projetista. 24
  • 25.
    POÇOS DE VISITA Definição Poçode vista é uma câmara visitável através de uma abertura existente na sua parte superior, ao nível do terreno, destinado a permitir a reunião de dois ou mais trechos consecutivos e a execução dos trabalhos de manutenção nos trechos a ele ligados (Figura VII.1). Figura VII.1 - Poço de visita convencional Localização Convencionalmente empregam-se poços de visita: - nas cabeceiras das redes; - nas mudanças de direção dos coletores (todo trecho tem que ser reto); - nas alterações de diâmetro; - nas alterações de posição e/ou direção de geratriz inferior da tubulação; - nos desníveis nas calhas; - nas mudanças de material; - nos encontros de coletores; - e em posições intermediárias em coletores com grandes extensões em linha reta onde a distância entre dois PV consecutivos não deverá exceder 100m. Dimensões 25
  • 26.
    A fim depermitir o movimento vertical de um operador, a chaminé, bem como o tampão, terão um diâmetro mínimo útil de 0,60m. O balão, sempre que possível, uma altura útil mínima de 2,0 metros, para que o operador maneje com liberdade de movimentos, os equipamentos de limpeza e desobstrução no interior do mesmo. A chaminé, não deverá ter altura superior a 1,0 m, por recomendações funcionais, operacionais e, até, psicológicas para o operador. Elementos para Especificações Pré-moldados (Figura VII.3.) Os poços de vista executados com anéis pré-moldados de concreto armado são muito raros, tendo em vista que as tubulações de saída são raramente inferiores a 400 mm de diâmetro. São construídos com a superposição vertical dos anéis de altura 0,30m ou 0,40m, sendo que, para o balão, estas peças tem 1,00 a 1,50 m de diâmetro e, para a chaminé 0,60m, como dimensões úteis mínimas. A redução do balão para a chaminé é feita por uma laje pré-moldada, "peça de transição", servindo também como suporte para a chaminé, com uma abertura excêntrica de 0,60m, que deve ser colocada de maneira tal que o centro de abertura projete-se sobre o eixo do coletor principal que passa pelo poço para montante (Figura VII.4). Figura VII.3 - PV em pré-moldados 26
  • 27.
    Figura VII.4 -Peça de transição A construção de um PV com anéis pré-moldados inicia-se com o nivelamento da fundação com brita compactada. A seguir é colocada uma camada de concreto simples 1:3:5, denominada de laje de fundo, com uma espessura mínima de 0,20m, sob a calha de saída do trecho de jusante, que será a base de sustentação para toda a estrutura do poço. O primeiro anel ficará apoiado numa parede de concreto ou alvenaria, numa altura mínima de 0,50m, para evitar a quebra desse anel quando da ligação das tubulações ao poço, o que provocaria danos a estabilidade estrutural do poço, enquanto que o acabamento do piso no fundo do PV é dado de modo a resultar numa declividade de 2% em direção a bordo das calhas. Este enchimento do fundo, em concreto 1:4:8, para moldagem das calhas, é denominado de "almofada do PV". O acesso ao fundo do poço é feito por uma escada tipo marinheiro, vertical, com degraus equiespaçados de 0,30m ou 0,40m e um mínimo útil de 0,15m de largura por 0,08m de altura (Figura VII.5), os quais vão sendo instalados a medida que se vão assentando os anéis, repousando cada degrau entre dois anéis consecutivos. Esses degraus podem ser de ferro galvanizado, mas como este material sofre desgaste corrosivo com o tempo, é preferível degraus em ligas de alumínio ou mesmo emprego de escadas portáteis, estas mais viáveis para poços de visita com profundidades inferiores a 3,00 metros, em substituição a escada fixa. A chaminé será executada obedecendo a sistemática similar recomendada para o balão, sendo que essa será encimada por um tampão padronizado no modelo pela concessionária exploradora dos serviços de drenagem, em ferro fundido. Na construção da chaminé normalmente são empregados anéis pré-moldados com altura de 0,30m por 0,60m de diâmetro e também anéis de menor altura, 0,15 ou 0,08m, para sua complementação. É recomendada a construção de uma chaminé com altura mínima de 0,30m para facilitar a construção ou reposição da pavimentação do leito viário. Todas as peças terão obrigatoriamente que assentarem-se sobre argamassa de cimento e areia a 1:3 em volume, sendo o excesso retirado e a junta alisada a colher de pedreiro e, 27
  • 28.
    para melhor acabamento,suas paredes cimentadas com nata de cimento dosada com impermeabilizante (1:12 na água). Figura VII.5 - Modelo de degrau Concreto Armado no Local(Figura VII.6) São de ocorrência mais freqüente para canalizações com diâmetro superior a 400 mm ou em situações onde não haja condições para obtenção de pré-moldados. Normalmente apenas o balão é armado no local, em concreto com dosagem mínima de cimento de 300 Kg/m³, podendo ter secção horizontal circular ou prismática, ficando a chaminé para ser feita com anéis pré-moldados, como citado no item anterior. Quanto ao acabamento, piso, base, calhas e outros serviços, segue a mesma orientação recomendada para os PVs pré- moldados. Alvenaria (Figura VII.7) A ocorrência de poços desta natureza decorre, na maioria das vezes, da dificuldade no local da obra, da obtenção de concreto, principalmente para confecção de balão, ou mesmo de cimento, implicando, de alguma forma, em estruturas mais viáveis, inclusive economicamente. As paredes terão espessura mínima de 0,20m, em tijolos maciços de uma vez, rejuntados, e rebocadas com argamassa de cimento e areia de 1:3 em volume, dosada com impermeabilizante, alisadas com colher de pedreiro. Externamente as paredes dever receber uma camada de chapisco e, se necessário, reboco impermeabilizante. O balão terá secção circular ou prismática, e será encimado por uma laje com abertura excêntrica, em concreto armado fundido no local, com espessura mínima de 0,10m, a 300 kg de cimentoo por metro cúbico de concreto. Na existência da chaminé, esta poderá ser executada em anéis pré-moldados, ou também, 28
  • 29.
    em alvenaria comoo balão, porém com a dimensão mínima de 0,60m de diâmetro por um máximo de 1,00m de altura. Figura VII.6 - Concreto Armado no Local FIGURA VII.7 - Poço de visita em alvenaria de tijolos 29
  • 30.
    TÉCNICAS DE DIMENSIONAMENTO PROJETOHIDRÁULICO Dados Básicos : Para que o projetista tenha condições de optar por uma concepção de rede de galerias e efetuar o cálculo do sistema, faz-se necessário que inicialmente o mesmo tenha em mãos uma série de levantamentos de dados inerentes a área em estudo. Este material basicamente é constituído dos seguintes documentos: - planta da área a ser drenada na escala 1:500 ou 1:1000, com curvas de níveis desenhadas de 0,5 em 0,5 ou de 1,0 em 1,0 m - mapa geral da bacia em escalas de 1:5000 ou 1:10000 - planta da área com indicações dos arruamentos existentes e projetados em escalas de 1:500 ou 1:1000 - secções transversais típicas e perfis longitudinais, bem como o ipo de pavimentação, das ruas e avenidas; - informações geotécnicas da área e do lençol freático; - locação dos pontos de lançamento final; - cadastramento de outros sistemas existentes; - curvas de intensidade/duração/frequência para chuvas na região; - outras informações que o projetista julgar necessárias. Informações adicionais sempre são pedidas após os projetistas visitarem o local da obra. Elaboração de Projeto A melhor alternativa de projeto é resultado de uma série de análises preliminares que antecedem aos cálculos definitivos para dimensionamento da rede coletora a ser implantada. Em um bom projeto nunca é facultado o memorial justificativo da concepção adotada, pois ele é resultado da convicção de certeza do projetista de que a hipótese é mais viável técnica e economicamente. De posse dos dados básicos necessários citados anteriormente, deve-se elaborar diversos esquemas alternativos e sobre eles questionar as vantagens e desvantagens de cada um, definindo-se por aquele que se apresentar mais viável no aspecto funcional e de acordo com os recursos disponíveis. De um modo geral, este trabalho compreende as seguintes etapas: 30
  • 31.
    1ª - determinaçãodos limites da bacia; 2ª - verificação das curvas de precipitação; 3ª - identificação das possíveis pontos de lançamento final; 4ª - desenvolvimento de esquemas alternativos; 5ª - elaboração da previsão de custos do projeto; 6ª - revisão dos dados básicos; 7ª - opção por uma concepção de projeto; 8ª - desenvolvimento dos cálculos definitivos; 9ª - preenchimento das planilhas de cálculo; 10ª - desenho do projeto definitivo ( planta e detalhes ); 11ª - elaboração dos quantitativos para orçamento e os cronogramas; 12ª - descrição dos memoriais e especificações da projeto. Seqüência de Cálculos A metodologia de um projeto de micro-drenagem pode variar de equipe de projetistas, mas, de um modo geral, pode-se academicamente sugerir o procedimento exposto a seguir. De posse da planta geral em escala conveniente ( 1:500 ou 1:1000 ), com curvas de nível desenhadas de metro em metro, além dos arruamentos e informações sobre toda a infraestrutura pública existente na área, inicia-se o estudo para a concepção definitiva de projeto. A seguir procede-se o cálculo da rede de acordo com a sequência: 1º- identifica-se os diversos divisores naturais de água delimitando-se todas as bacias e sub- bacias da área, em função dos pontos de lançamento final ( sugestão : traço + dois pontos); 2º- indentifica-se o sentido de escoamento nas sarjetas (com pequenas setas); 3º- identifica-se as áreas de contribuição para cada trecho de sarjeta ( traço + ponto); 4º- define-se as posições das primeiras bocas coletoras e as demais de jusante (pequenos retângulos); 5º- lança-se um traçado de galerias ( linha dupla descontínua ) e loca-se os poços de visita onde se fizerem necessários (pequenos círculos); 6º- estuda-se o posicionamentodas tubulações de ligação (traço descontínuo) e as possíveis caixas de ligação ( pequenos quadrados); 7º- numeram-se os poços de visita no sentido crescente das vazões (algarismos arábicos); 8º- identificam-se as cotas do terreno em cada poço de visita; 9º- mede-se a extensão de cada trecho; 10º- denominam-se as áreas de contribuição para cada trecho (An); 11º- define-se o coeficiente (ou coeficientes) de escoamento superficial em função da ocupação atual e futura da área, para cada área de contribuição. Neste ponto tem-se na planta todos os dados necessários identificados e/ou determinados, para o cálculo de cada trecho de galeria (diâmetro "D", declividade "I" e profundidade "h"). Recomendações Usuais para Projetos Cada projetista logicamente tem seu modelo de concepção para um trabalho dentro das normas existentes e do seu ponto de vista. Isto torna-se mais notável quando se trata de precauções próprias quanto a segurança e eficiência do projeto implantado. Dentre os procedimentos práticos freqüentemente usados em um cálculo de sistemas de galerias pluviais podem ser citados: 31
  • 32.
    a) em cadapoço de visita nenhuma galeria de entrada poderá ter seu topo em cota inferior ao topo da galeria de saída; b) no interior de cada poço de visita admite-se uma queda mínima de 0,10 m na linha piezométrica; c) os poços de visita não deverão receber mais que quatro condutos de ligação; d) as caixas de ligação não deverão receber mais que dois condutos de ligação; e) no cálculo das capacidades dos condutos deve-se admitir um coeficiente de rugosidade 20% maior que o teórico aplicado para o revestimento empregado nas paredes internas das galerias; f) os condutos de ligação deverão ser executados com uma declividade mínima de 1%. OBS.: Quando uma determinada caixa de ligação destinar-se a reunir tubos de ligação provenientes das bocas coletoras para em seguida encaminhar a vazão reunida para o poço de visita mais próximo, através de uma outra tubulação de ligação, esta caixa poderá receber até três afluentes de bocas coletoras. Redes de microdrenagem A microdrenagem urbana é definida pelo sistema de condutos pluviais no loteamento ou na rede primária urbana. O dimensionamento de uma rede de pluviais é baseado nas seguintes etapas: • Subdivisão em áreas de drenagem e traçado; • Determinação das vazões que afluem à rede de condutos; • Dimensionamento da rede de condutos. Dados necessários: Os principais dados necessários à elaboração de um projeto de rede pluvial de microdrenagem são os seguintes: Mapas: Os principais mapas necessários aos estudos são os seguintes: • Mapa de situação da localização da área dentro do município; • Planta geral da bacia contribuinte: escalas 1:5.000 ou 1:10.000, juntamente com a localização da área de drenagem. No caso de não existir planta plani- 32
  • 33.
    altimétrica da bacia,deve ser delimitado o divisor topográfico por poligonal nivelada; • Planta plani-altimétrica da área do projeto na escala 1:2.000 ou 1:1.000, com pontos cotados nas esquinas e em pontos notáveis. Levantamento Topográfico: o nivelamento geométrico em todas as esquinas, mudança de direção e mudança de greides das vias públicas; Cadastro: de redes existentes de esgotos pluviais ou de outros serviços que possam interferir na área de projeto; Urbanização: devem ser identificados elementos que permitam avaliar como é a urbanização da bacia contribuinte, na situação atual e prevista no plano diretor, como, por exemplo, tipo de ocupação das áreas (residências, comércio, praças, etc.), porcentagem de área impermeável projetada de ocupação dos lotes, ocupação e recobrimento do solo nas áreas não urbanizadas pertencentes à bacia. Dados relativos ao curso de água receptor: essas informações devem conter indicações sobre o nível de água máximo do canal/arroio que irá receber o lançamento final, levantamento topográfico do local de descarga final. Critérios para o traçado da rede pluvial A rede coletora deve ser lançada em planta baixa (escala 1:2.000 ou 1:1.000), de acordo com as condições naturais do escoamento superficial. Algumas regras básicas para o traçado da rede são as seguintes: Os divisores de bacias e as áreas contribuintes a cada trecho deverão ficar convenientemente assinalados nas plantas; Os trechos em que o escoamento se dê apenas pelas sarjetas devem ficar identificados por meio de setas; 33
  • 34.
    As redes demicrodrenagem pluvial, sempre que possível, deverão ser lançadas sob os passeios; O sistema coletor, em uma determinada via, poderá constar de uma rede única, recebendo ligações de bocas-de-lobo de ambos os passeios; A solução mais adequada, em cada rua, é estabelecida, economicamente, em função da sua largura e condições de pavimentação; O amortecimento do escoamento é realizado nas áreas baixas junto a drenagem principal. Procura-se localizar a área de amortecimento preferencialmente junto à saída do sistema projetado; Preferencialmente, os sistemas de detenções devem estar integrados de forma paisagística na área, neste caso, poderá ser necessário utilizar detenções ou retenções internas ao parcelamento na forma de lagos permanentes ou secos integrados ao uso previsto para a área; O projeto deve estabelecer a área máxima impermeável de cada lote do parcelamento, além das áreas comuns. Componentes hidráulicos do sistema de redes de microdrenagem pluvial Bocas-de-Lobo: as bocas-de-lobo devem ser localizadas de maneira a conduzirem, adequadamente, as vazões superficiais para a rede de condutos. Nos pontos mais baixos do sistema viário, deverão ser, necessariamente, colocadas bocas-de-lobo com vistas a se evitar a criação de zonas mortas com alagamentos e águas paradas. Poços de Visita: os poços de visita devem atender às mudanças de direção, de diâmetro e de declividade à ligação das bocas-de-lobo, ao entroncamento dos diversos trechos e ao afastamento máximo admissível. Canalização circular: o diâmetro mínimo das galerias de seção circular deve ser de 34
  • 35.
    0,30m. Os diâmetroscomerciais correntes são: 0,30; 0,40; 0,50; 0,60; 0,80; 1,00; 1,20 e 1,50m. Alguns dos critérios básicos de projeto são os seguintes: • As redes de microdrenagem pluvial são projetadas para funcionamento a seção plena com a vazão de projeto. A velocidade máxima admissível determina- se em função do material a ser empregado na rede. Para tubo de concreto, a velocidade máxima admissível é de 4,0m/s e a velocidade mínima é de 0,80 m/s; • O recobrimento mínimo da rede de drenagem pluvial deve ser de 1,00m, quando forem empregadas tubulações sem estrutura especial. Quando, por condições topográficas, forem utilizados recobrimentos menores, as canalizações deverão ser estruturalmente projetadas ou protegidas por estruturas especiais; Disposição dos componentes; Traçado preliminar: através de critérios usuais de drenagem urbana, devem ser estudados diversos traçados da rede de microdrenagem, considerando-se os dados topográficos existentes e o pré-dimensionamento hidrológico e hidráulico. A definição da concepção inicial é mais importante para a economia global do sistema do que os estudos posteriores de detalhamento do projeto, de especificação de materiais, etc. Coletores: existem duas hipóteses para a locação da rede coletora de águas pluviais: (i) no passeio, a 1/3 da guia (meio-fio) e (ii) a menos utilizada, sob o eixo da via pública Bocas-de-lobo: a locação das bocas-de-lobo deve considerar as seguintes recomendações: (i) serão locadas em ambos os lados da rua, quando a saturação da sarjeta assim o exigir ou quando forem ultrapassadas as suas capacidades de engolimento; (ii) serão locadas nos pontos baixos da quadra; 35
  • 36.
    (iii) (iii) alocalização das bocas-de-lobo deve ser determinada através do cálculo da capacidade hidráulica da sarjeta, considerando-se uma altura do meio-fio de 0,15 m e uma largura da lâmina d’água variável (estipulada caso a caso, nas diretrizes de projeto fornecidas pela equipe de acompanhamento da prefeitura); (iv) a melhor solução para a instalação de bocas-de-lobo é que esta seja feita em pontos pouco a montante de cada faixa de cruzamento usada pelos pedestres, junto às esquinas; (v) não é conveniente a sua localização junto ao vértice de ângulo de interseção das sarjetas de duas ruas convergentes, porque os pedestres, para cruzarem uma rua, teriam que saltar a torrente num trecho de máxima vazão superficial e, também, porque as torrentes convergentes pelas diferentes sarjetas teriam, como resultante, um escoamento de velocidade em sentido contrário ao da afluência para o interior da boca-de-lobo. Poços de visita e de queda: o poço de visita tem a função primordial de permitir o acesso às canalizações para limpeza e inspeção, de modo que se possam mantê-las em bom estado de funcionamento. Sua locação é sugerida nos pontos de mudanças de direção, cruzamento de ruas (reunião de vários coletores), mudanças de declividade e mudança de diâmetro. O espaçamento recomendado para os poços de visita é de 50 m. Dimensionamento hidráulico da rede de condutos Capacidade de condução hidráulica de ruas e sarjetas As águas, ao caírem nas áreas urbanas, escoam, inicialmente, pelos terrenos até chegarem às ruas. Sendo as ruas abauladas (declividade transversal) e tendo inclinação longitudinal, as águas escoarão rapidamente para as sarjetas e, destas, ruas abaixo O dimensionamento hidráulico pode ser obtido pela equação de Manning transformada: 36
  • 37.
    Q = A.Rh2/ 3 . S 1/2 n Onde: Q = vazão(m3/s) A é a área de seção transversal da sarjeta(m2) Rh é o raio hidráuico(m) S é a declividade do fundo(m/m) n é o coeficiente de rugosidade de Manning TABELA – COEFICIENTE DE RUGOSIDADE DE MANNING CARACTERÍSTICAS n Canais revestidos: Canais retilíneos com grama de até 15 cm de altura 0,30 - 0,40 Canais retilíneos com capins de até 30 cm de altura 0,30 - 0,060 Galerias de concreto: Pré-moldado com bom acabamento 0,011 - 0,014 Moldado no local com formas metálicas simples 0,012 - 0,014 Moldado no local com formas de madeira 0, 015 - 0,020 Sarjetas: Asfalto suave 0,013 Asfalto rugoso 0,016 Concreto suave com pavimento de asfalto 0,014 Concreto rugoso com pavimento de asfalto 0,015 Pavimento de concreto 0,014 - 0,017 37
  • 38.
    Pedras 0,017 Para outrostipos de materiais pode-se recorrer às tabelas e fotografias apresentadas por Chow (1959), no livro Open channel Hydraulics Para a via pública, o coeficiente de rugosidade, em geral, é de 0,017. Exemplo - Calcule a vazão máxima que escoa pela sarjeta com uma altura de 15 cm e por toda a rua, segundo os parâmetros normais de via pública. Para uma declividade longitudinal de 0,005 m/m, quais são as vazões? Bocas-de-Lobo Tipos: as bocas coletoras (bocas-de-lobo) podem ser classificadas em três grupos principais: bocas ou ralos de guias; ralos de sarjetas (grelhas); ralos combinados. Cada tipo inclui variações quanto às depressões (rebaixamento) em relação ao nível da superfície normal do perímetro e ao seu número (simples ou múltipla) (Figura 5.5). Capacidade de engolimento: quando a água acumula sobre a boca-de-lobo, gera uma lâmina com altura menor do que a abertura da guia. Esse tipo de boca-de-lobo pode ser considerado um vertedor, e a capacidade de engolimento será dada por : Q = 1,7.L.y 3/2 Onde: Q é a vazão de engolimento (m3 /s); y é a altura de água próxima à abertura na guia (m); L é o comprimento da soleira (m). 38
  • 39.
    Exemplo: Dimensione umaboca-de-lobo para uma vazão de 94 l/s na sarjeta e uma lâmina de água de 0,10 m. Solução: como boca-de-lobo de guia 39
  • 40.
    Canalizações O dimensionamento dascanalizações que compõem o sistema de redes de microdrenagem é realizado com base nas equações hidráulicas de movimento uniforme, como a de Manning (equação 5.2), Chezy e outras. Exemplo : Determine o diâmetro necessário para escoar a vazão de 94 l/s obtida no exemplo anterior, considerando a declividade longitudinal da rua igual a 0,001 m/m. O conduto é de concreto, com n = 0,013. 40
  • 41.
  • 42.
    REFERÊNCIAS BIBLIOGRÁFICAS: ABNT -"Normas Técnicas e Especificações". AZEVEDO NETTO, J. M.. "Tratamento de Águas de Abasteci mento", Editora da Universidade de São Paulo, 1966) AZEVEDO NETTO, J. M., ALVAREZ, G. A. - "Manual de Hidráulica", Ed. Edgard Blucher Ltda, 7ª Edição, São Paulo, 1982. AZEVEDO NETTO, J. M., CAMPOS BOTELHO, M. H.. "Manual de Saneamento de Cidades e Edificações", Editora Pini, 1991. BOTELHO, M. H. C. - "Águas de chuva - Engenharia das Águas de Chuva nas Cidades", Ed. Edgard Blucher Ltda, São Paulo, 1985. CHOW, VEN TE, - " Handbook of Applied Hydrology", McGraw-Hill, New York,1964. DACACH, N. G. - "Sistemas Urbanos de Água", LTC Editora S.A., 2ª Edição, Rio de Janeiro, 1979. DACACH, N. G. - "Sistemas Urbanos de Esgotos", Ed. Guanabara Dois, Rio de Janeiro, 1984. FUGITA, O. e outros - "Drenagem Urbana - Manual de Projeto", DAEE/CETESB, 1980. GARCEZ, L. N. - "Elementos de Engenharia Hidráulica e Sanitária", Ed. Edgard Blucher Ltda, São Paulo, 1969. HAMMER, M. J. "Sistemas de Abastecimento de Água e Esgotos", LTC Editora S.A., Rio de Janeiro, 1979. HWANG, N. H. C. - "Fundamentos de Sistemas de Engenharia Hidráulica", Prentice-Hall do Brasil, Rio de Janeiro, 1984. LENCASTRE, A. - "Hidráulica Geral", Edição Luso-Brasileira da HIDRO - PROJECTO, Lisboa, 1983. MACINTYRE, A. J. - "Bombas e Instalações de Bombeamento", Ed.Guanabara Dois, Rio de Janeiro, 1980. MEDEIROS Fº, C. F. - "Micro-Drenagem: Estudo para Dimensionamento de Pequenos Projetos", DEC/CCT/UFPB, Campina Grande, Pb, 1985. NEVES, E. T. - "Curso de Hidráulica", Editora Globo, 4ª Edição, Porto Alegre,1974. NINA, A. D. - "Construção de Redes de Esgotos Sanitários", CETESB, São Paulo, 1975. PIMENTA, C. F. - "Curso de Hidráulica Geral", Centro Tecnológico de Hidráulica, 3ª Ed., São Paulo, 1977. PINTO, N. L. S. [ e outros ] - "Hidrologia Básica", Ed. Edgard Blucher Ltda, São Paulo, 1976. SILVESTRE, P. - "Hidráulica Geral", LTC Editora S.A., Rio de Janeiro, 1973. STEEL, E. W. - " Abastecimento de Água - Sistema de Esgotos", Ed. Ao Livro Técnico S.A., Rio de Janeiro, 1966. 42
  • 43.
    WILKEN, P. S.- "Engenharia de Drenagem Superficial", CETESB, São Paulo,1978. W.P.C.F. - "Manual de Prática, Num. FD-4, Diseño de Estaciones de Bombeo de Aguas Residuales y Aguas Pluviales", Washington, 1984. W.P.C.F. - "Manual of Practice, Nº 9, Design and Construction of Sanitary and Storm Sewers", Reed., Washington, 1986. 43