Tópicos do Módulo 4 : 2ª parte
MÓDULO 4 : Edifícios estruturados em Aço - 2ª parte
Dimensionamento de elementos estruturais em aço de um edificio de 5 pavimentos
1. Cáculo das Vigas V1
1.1. Elementos Fletidos
2. Cáculo das Vigas V1
2.1. Elementos Fletidos
2.2. Deslocamento Limite
2.3. Determinação da Força Cortante Resistente
de Dimensionamento
2.4. Verificação Flambagem Local - FLM e FLA
2.5. Determinação do Momento Fletor Resistente
de Dimensionamento
3. Cálculo dos Pilares
3.1. Elementos Comprimidos
3.2. Cálculo da Força Resistente de Cálculo
Módulo 4 : Edifícios estruturados em Aço - 2ª Parte
Dimensionamento de elementos estruturais em Aço de um Prédio com cinco pavimentos
3º Estudo de Caso - Edifício de 5 Pavimentos estruturado em Aço
Dimensionar os elementos estruturais do edifício de acordo com a NBR 8800 : 2008.
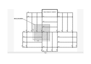
Fig 3_a - Planta Baixa
Fig 3_b - Corte
Perpectiva 1
Perpectiva 2
Perpectiva 3
Dados de projeto:
 Usar perfis laminados ASTM A572 G50
 Lajes em concreto pré-moldado
 Uso: Edifício residencial
 Não será dada contra-flecha nas vigas
O edifício suportará as cargas indicadas:
Laje pré-moldada B=12cm 2,0 kN/m2
Revestimento 1,0 kN/m2
Peso próprio da estrutura (estimado)0,45 kN/m2
Carga acidental (NBR 6120) 1,5 kN/m2
Paredes com blocos cerâmicos 11,2kN/ m3
Obs:
1.Considerar todas as vigas contidas lateralmente pelas lajes.
2. Para edifícios de até 5 pavimentos, podem ser desprezadas as cargas horizontais de vento.
Comentários
Em edifícios, ou em qualquer outra edificação com grande volume de estrutura, recomendamos que se faça uma análise cuidadosa, afim de agrupar o maior número de peças
que estão submetidas a solicitações de mesma ordem de grandeza e, reduzindo a variação das seções. Com isso, buscasse conseguir um adequado aproveitamento das seções e
uma maior economia final.
No nosso caso, podemos dividir todas as vigas do pavimento tipo em dois grandes grupos: V1 e V2.
O grupo das vigas V1 é o que tem as menores solicitações e, portanto, resultará em perfis mais leves. Isso é fácil de ser percebido apenas observando que
se tratam de vigas que só apóiam determinada área de laje. Já no grupo das V2 temos vigas que além de apoiarem determinadas áreas de laje, também
apóiam outras vigas. Portanto, perfis mais pesados farão parte deste grupo.
1. Cálculo das Vigas V1
1.1. Elementos Fletidos
Cálculo dos esforços atuantes
Coeficientes de ponderação das ações:
(peso próprio da estrutura)
(peso próprio da estrutura)
(peso próprio da estrutura)
Portanto a carga distribuída em KN/m na viga é:
- Combinação Última Normal
DICA: Uma maneira prática de determinar os esforços máximos da viga é utilizar os gráficos dos esforços. Calculando-se as reações pelas equações da
estática determina-se o gráfico da força cortante. A soma das áreas do gráfico de cortante à esquerda ou à direita de um ponto da viga é, numericamente, o
momento fletor naquele ponto.
Fig 3_c
Fig 3_d
Fig 3_e
O Momento máximo positivo da viga V1, por exemplo, ocorre no ponto onde o cortante é igual a zero e seu valor pode ser calculado através da área do
triângulo 1.
MSd = 178,0kNm
VSd = 99,9kN
Deslocamento Limite
Para que não se utilize contra-flecha, atenderemos a seguinte condição:
Onde:
é a carga distribuída da peça (kN/cm), resultado da combinação de serviço mais adequada;
é o comprimento do vão (cm);
é o módulo de elasticidade do aço (kN/cm2
);
é o momento de inércia da seção em cm4
.
- Combinação quase permanente, onde não há equipamentos nem elevada concentração de pessoas – TABELA 2, Ítem 4.7.6.2.2 da Norma.
Isolando na expressão, obtemos o momento de inércia mínimo:
Supondo uma seção compacta e utilizando a expressão que define o momento resistente de cálculo:
Onde:
= 1,10
é o módulo de resistência plástico (mínimo) da seção em relação a x-x
é a resistência ao escoamento do aço
E isolando Zx na expressão, encontramos:
Observe que conhecendo o momento de inércia e o módulo de resistência, valores mínimos, podemos selecionar na tabela de perfis a seção que já estará
verificada quanto ao deslocamento máximo e resistência a flexão adequada, restando a verificação ao cisalhamento.
(Ver Uso do Aço na Arquitetura - Prof. Margarido, Cap.3 P.4)
Critério para a escolha do perfil:
O critério sempre será: segurança estrutural x economia. Na tabela encontramos os perfis possíveis: W 410x60,0 kg/m e o W 460x52,0 kg/m. Note que os
dois atendem às propriedades geométricas mínimas, mas o último com MENOR peso por metro tem praticamente o mesmo desempenho, pois possui
momento de inércia com valor próximo ao primeiro.
Perfil escolhido W 460x52,0 kg/m (1ª alma)
Propriedades geométricas da seção
d = 45,0 cm Ix = 21.370 cm4
A = 66,6 cm2
bf = 15,2 cmWx = 949,8 cm3
Aw = d. tw = 34,2 cm2
tw = 0,76 cmZx = 1.095,9 cm3
rx = 17,91cm
tf = 1,08 cm h = d-2.tf = 42,8 cmry = 3,09 cm
DETERMINAÇÃO DA FORÇA CORTANTE RESISTENTE DE DIMENSIONAMENTO
Onde: kv = 5 para vigas sem enrijecedores
A expressão que define a força cortante resistente de dimensionamento é dada por:
VERIFICAÇÃO DA FLAMBAGEM LOCAL – FLM E FLA
Para as mesas (FLM)
(OK!)
Garante que não há instabilidade nas mesas da seção
Para a alma (FLA)
(OK!)
Garante que não há instabilidade na alma da seção.
DETERMINAÇÃO DO MOMENTO FLETOR RESISTENTE DE DIMENSIONAMENTO
Como (confirmado, seção compacta) »
(OK!)
OK, o perfil W 460x52,0 kg/m atende!
CÁLCULO DAS VIGAS V2
ELEMENTOS FLETIDOS
Cálculo dos esforços atuantes
Coeficientes de ponderação das ações:
;(peso próprio da estrutura)
;(estrutura moldada no local e elementos industrializados)
;(ações variáveis, incluindo as decorrentes do uso e ocupação)
Portanto a carga distribuída em KN/m na viga é:
- Combinação Última Normal
Obs: Para se determinar o valor em kN/m das alvenarias sobre as vigas, multiplica-se:
LARGURA DA ALVENARIA x ALTURA ÚTIL x PESO ESPECÍFICO DA PAREDE
= 0,15m x 2,54m (3,0m-0,46m) x 11,2kN/ m3 = 4,27 kN/m
Fig 3.f
Fig 3.g
Fig 3.h
O Momento máximo positivo da viga V2 ocorre no ponto onde o cortante é igual a zero e seu valor pode ser calculado através da área da figura 1.
DESLOCAMENTO LIMITE
Para que não se utilize contra-flecha, atenderemos a seguinte condição:
(PARA AS CARGAS DISTRIBUÍDAS)
(PARA AS CARGAS CONCENTRADAS)
Onde:
: é a carga distribuída da peça (kN/cm), resultado da combinação de serviço mais adequada;
: é o comprimento do vão (cm)
: é o módulo de elasticidade do aço (kN/cm2
)
: é o momento de inércia da seção em cm4
: são as cargas concentradas em kN, valor característico
: são as distâncias das cargas concentradas aos apoios
- Combinação quase permanente, onde não há equipamentos nem elevada concentração de pessoas – TABELA 2, Ítem 4.7.6.2.2 da Norma.
Lembrando que a reação da V1 neste caso deve ser calculada com a carga resultante da combinação de serviço já encontrada:
Que resulta em:
- corresponde à reação da V1 com ponderação de serviço .
Isolando nas duas expressões, obtemos os momentos de inércia mínimos que devem ser somados para atender as solicitações dentro do limite de
deformação:
Supondo seção compacta e utilizando a expressão que define o momento resistente de cálculo:
Onde:
é o módulo de resistência plástico (mínimo) da seção em relação a x-x
é a resistência ao escoamento do aço.
E isolando na expressão, encontramos:
Perfil escolhido W 530x82,0 kg/m
Propriedades geométricas da seção
d = 52,8 cm Ix = 47.569 cm4
A = 104,5 cm2
bf = 20,9 cmWx = 1.801,8 cm3
Aw = 50,2 cm2
tw = 0,95 cmZx = 2.058,5 cm3
rx = 21,34 cm
tf = 1,33 cm h = d-2.tf = 50,1 cmry = 4,41 cm
Módulo 4 : Edifícios estruturados em Aço - 2ª Parte - p2
Perfil escolhido W 530x82,0 kg/m
Propriedades geométricas da seção
d = 52,8 cm Ix = 47.569 cm4
A = 104,5 cm2
bf = 20,9 cm Wx = 1.801,8 cm3
Aw = 50,2 cm2
tw = 0,95 cm Zx = 2.058,5 cm3
rx = 21,34 cm
tf = 1,33 cm h = d-2.tf = 50,1 cm ry = 4,41 cm
DETERMINAÇÃO DA FORÇA CORTANTE RESISTENTE DE DIMENSIONAMENTO
OK!
Onde: para vigas sem enrijecedores.
Então, a expressão que define a força cortante resistente de dimensionamento é dada por:
(OK!)
VERIFICAÇÃO DA FLAMBAGEM LOCAL – FLM E FLA
Para as mesas (FLM)
(OK!)
Garante que não há instabilidade nas mesas da seção.
Para a alma (FLA)
(OK!)
Garante que não há instabilidade na alma da seção.
DETERMINAÇÃO DO MOMENTO FLETOR RESISTENTE DE CÀLCULO
(confirmado, seção compacta) →
OK, o perfil W 530x82,0 atende!
Obs: Repare que a resistência da seção é 63% maior que a necessária. Quem comandou o dimensionamento, neste caso, foi a deformação. Foi necessária
uma peça com inércia elevada para combater as deformações previstas. Estruturas com vãos até 6m para edifícios são mais econômicas.
CÁLCULO DOS PILARES
Para os pilares vale a mesma recomendação que foram feitas para as vigas: agrupá-los e dimensionar para os esforços máximos de cada grupo. No nosso
estudo, porém, dimensionaremos apenas o pilar de maior carga.
ELEMENTOS COMPRIMIDOS
As cargas atuantes no pilar P1 podem ser calculadas através das reações das vigas V1 e V2 ou por área de influência.
- Combinação Última Normal
Obs:
A cobertura, na maioria dos casos, contribui com menos carga que os pavimentos tipo. Em nosso exemplo, consideramos a cobertura igual ao pavimento
tipo para simplificar os cálculos.
Fig3.i
Normalmente, nos caso das peças comprimidas, escolhe-se uma seção e verifica-se a sua estabilidade.
Seja, então, o perfil W 250x89,0 kg/m.
Propriedades geométricas da seção:
Ag = 113,9 cm2
d = 26,0cm
bf = 25,6cm
tw = 1,07cm
tf = 1,73cm
rx = 11,18cm
ry = 6,52cm
h = d - 2 tf = 22,5cm
DETERMINAÇÃO DA FORÇA RESISTENTE DE CÁLCULO
Verificação da flambagem local da Alma
Elementos AA – Possuem duas bordas longitudinais vinculadas (Caso 2, tabela F.1, Anexo F da Norma)
Verificação da flambagem local das mesas
Elementos AL – Possui uma borda longitudinal vinculada (Caso 4, tabela F.1, Anexo F da Norma)
Já que alma e mesa estão dentro dos limites, Q = 1.
Condições dos vínculos
Fig3.j
Valor do índice de esbeltez reduzido em relação aos dois eixos centrais de inércia.
O valor de Ne usado é em relação ao eixo central de menor inércia, portanto a situação de maior instabilidade:
Observe a importância da decisão do engenheiro projetista ao conceber a estrutura e de utilizar o através de Ky = 0,7 uma base engastada. Neste caso esta
decisão resultou em = 0,36, que resultará em uma leve ponderação na capacidade resistente do pilar.
O valor do índice de esbeltez reduzido mais desfavorável ficou dentro do limite indicando que o valor de X pode ser determinado na tabela 4 - Pag.
45.
Verificação quanto à flambagem global
FINALMENTE,
(O PERFIL ATENDE !)
CONTRAVENTAMENTOS
Uma maneira eficiente de contraventar um edifício é com a utilização de um núcleo rígido de concreto armado que servirá como “caixa” para elevador e/ou
escada. Estes núcleos geralmente possuem pelo menos três lados sem grandes aberturas, formando estruturas bastante rígidas, indeslocáveis, e capazes
de impedir movimentações laterais e absorver esforços horizontais.

Roteiro DIMENSIONAMENTO DE AÇOS

  • 1.
    Tópicos do Módulo4 : 2ª parte MÓDULO 4 : Edifícios estruturados em Aço - 2ª parte Dimensionamento de elementos estruturais em aço de um edificio de 5 pavimentos 1. Cáculo das Vigas V1 1.1. Elementos Fletidos 2. Cáculo das Vigas V1 2.1. Elementos Fletidos 2.2. Deslocamento Limite 2.3. Determinação da Força Cortante Resistente de Dimensionamento 2.4. Verificação Flambagem Local - FLM e FLA 2.5. Determinação do Momento Fletor Resistente de Dimensionamento 3. Cálculo dos Pilares
  • 2.
    3.1. Elementos Comprimidos 3.2.Cálculo da Força Resistente de Cálculo Módulo 4 : Edifícios estruturados em Aço - 2ª Parte Dimensionamento de elementos estruturais em Aço de um Prédio com cinco pavimentos 3º Estudo de Caso - Edifício de 5 Pavimentos estruturado em Aço Dimensionar os elementos estruturais do edifício de acordo com a NBR 8800 : 2008.
  • 4.
    Fig 3_a -Planta Baixa
  • 5.
    Fig 3_b -Corte Perpectiva 1
  • 6.
  • 7.
  • 8.
     Usar perfislaminados ASTM A572 G50  Lajes em concreto pré-moldado  Uso: Edifício residencial  Não será dada contra-flecha nas vigas O edifício suportará as cargas indicadas: Laje pré-moldada B=12cm 2,0 kN/m2 Revestimento 1,0 kN/m2 Peso próprio da estrutura (estimado)0,45 kN/m2 Carga acidental (NBR 6120) 1,5 kN/m2 Paredes com blocos cerâmicos 11,2kN/ m3 Obs: 1.Considerar todas as vigas contidas lateralmente pelas lajes. 2. Para edifícios de até 5 pavimentos, podem ser desprezadas as cargas horizontais de vento. Comentários Em edifícios, ou em qualquer outra edificação com grande volume de estrutura, recomendamos que se faça uma análise cuidadosa, afim de agrupar o maior número de peças que estão submetidas a solicitações de mesma ordem de grandeza e, reduzindo a variação das seções. Com isso, buscasse conseguir um adequado aproveitamento das seções e uma maior economia final. No nosso caso, podemos dividir todas as vigas do pavimento tipo em dois grandes grupos: V1 e V2.
  • 9.
    O grupo dasvigas V1 é o que tem as menores solicitações e, portanto, resultará em perfis mais leves. Isso é fácil de ser percebido apenas observando que se tratam de vigas que só apóiam determinada área de laje. Já no grupo das V2 temos vigas que além de apoiarem determinadas áreas de laje, também apóiam outras vigas. Portanto, perfis mais pesados farão parte deste grupo. 1. Cálculo das Vigas V1 1.1. Elementos Fletidos Cálculo dos esforços atuantes Coeficientes de ponderação das ações: (peso próprio da estrutura) (peso próprio da estrutura) (peso próprio da estrutura) Portanto a carga distribuída em KN/m na viga é: - Combinação Última Normal DICA: Uma maneira prática de determinar os esforços máximos da viga é utilizar os gráficos dos esforços. Calculando-se as reações pelas equações da estática determina-se o gráfico da força cortante. A soma das áreas do gráfico de cortante à esquerda ou à direita de um ponto da viga é, numericamente, o momento fletor naquele ponto.
  • 10.
  • 11.
  • 12.
    Fig 3_e O Momentomáximo positivo da viga V1, por exemplo, ocorre no ponto onde o cortante é igual a zero e seu valor pode ser calculado através da área do triângulo 1. MSd = 178,0kNm VSd = 99,9kN
  • 13.
    Deslocamento Limite Para quenão se utilize contra-flecha, atenderemos a seguinte condição: Onde: é a carga distribuída da peça (kN/cm), resultado da combinação de serviço mais adequada; é o comprimento do vão (cm); é o módulo de elasticidade do aço (kN/cm2 ); é o momento de inércia da seção em cm4 . - Combinação quase permanente, onde não há equipamentos nem elevada concentração de pessoas – TABELA 2, Ítem 4.7.6.2.2 da Norma. Isolando na expressão, obtemos o momento de inércia mínimo:
  • 14.
    Supondo uma seçãocompacta e utilizando a expressão que define o momento resistente de cálculo: Onde: = 1,10 é o módulo de resistência plástico (mínimo) da seção em relação a x-x é a resistência ao escoamento do aço E isolando Zx na expressão, encontramos: Observe que conhecendo o momento de inércia e o módulo de resistência, valores mínimos, podemos selecionar na tabela de perfis a seção que já estará verificada quanto ao deslocamento máximo e resistência a flexão adequada, restando a verificação ao cisalhamento. (Ver Uso do Aço na Arquitetura - Prof. Margarido, Cap.3 P.4) Critério para a escolha do perfil: O critério sempre será: segurança estrutural x economia. Na tabela encontramos os perfis possíveis: W 410x60,0 kg/m e o W 460x52,0 kg/m. Note que os dois atendem às propriedades geométricas mínimas, mas o último com MENOR peso por metro tem praticamente o mesmo desempenho, pois possui momento de inércia com valor próximo ao primeiro.
  • 15.
    Perfil escolhido W460x52,0 kg/m (1ª alma) Propriedades geométricas da seção d = 45,0 cm Ix = 21.370 cm4 A = 66,6 cm2 bf = 15,2 cmWx = 949,8 cm3 Aw = d. tw = 34,2 cm2 tw = 0,76 cmZx = 1.095,9 cm3 rx = 17,91cm tf = 1,08 cm h = d-2.tf = 42,8 cmry = 3,09 cm DETERMINAÇÃO DA FORÇA CORTANTE RESISTENTE DE DIMENSIONAMENTO Onde: kv = 5 para vigas sem enrijecedores A expressão que define a força cortante resistente de dimensionamento é dada por:
  • 16.
    VERIFICAÇÃO DA FLAMBAGEMLOCAL – FLM E FLA Para as mesas (FLM) (OK!) Garante que não há instabilidade nas mesas da seção Para a alma (FLA) (OK!) Garante que não há instabilidade na alma da seção. DETERMINAÇÃO DO MOMENTO FLETOR RESISTENTE DE DIMENSIONAMENTO Como (confirmado, seção compacta) »
  • 17.
    (OK!) OK, o perfilW 460x52,0 kg/m atende! CÁLCULO DAS VIGAS V2 ELEMENTOS FLETIDOS Cálculo dos esforços atuantes Coeficientes de ponderação das ações: ;(peso próprio da estrutura) ;(estrutura moldada no local e elementos industrializados) ;(ações variáveis, incluindo as decorrentes do uso e ocupação) Portanto a carga distribuída em KN/m na viga é: - Combinação Última Normal
  • 18.
    Obs: Para sedeterminar o valor em kN/m das alvenarias sobre as vigas, multiplica-se: LARGURA DA ALVENARIA x ALTURA ÚTIL x PESO ESPECÍFICO DA PAREDE = 0,15m x 2,54m (3,0m-0,46m) x 11,2kN/ m3 = 4,27 kN/m
  • 19.
  • 20.
  • 21.
    Fig 3.h O Momentomáximo positivo da viga V2 ocorre no ponto onde o cortante é igual a zero e seu valor pode ser calculado através da área da figura 1. DESLOCAMENTO LIMITE
  • 22.
    Para que nãose utilize contra-flecha, atenderemos a seguinte condição: (PARA AS CARGAS DISTRIBUÍDAS) (PARA AS CARGAS CONCENTRADAS) Onde: : é a carga distribuída da peça (kN/cm), resultado da combinação de serviço mais adequada; : é o comprimento do vão (cm) : é o módulo de elasticidade do aço (kN/cm2 ) : é o momento de inércia da seção em cm4 : são as cargas concentradas em kN, valor característico : são as distâncias das cargas concentradas aos apoios - Combinação quase permanente, onde não há equipamentos nem elevada concentração de pessoas – TABELA 2, Ítem 4.7.6.2.2 da Norma. Lembrando que a reação da V1 neste caso deve ser calculada com a carga resultante da combinação de serviço já encontrada:
  • 23.
    Que resulta em: -corresponde à reação da V1 com ponderação de serviço . Isolando nas duas expressões, obtemos os momentos de inércia mínimos que devem ser somados para atender as solicitações dentro do limite de deformação: Supondo seção compacta e utilizando a expressão que define o momento resistente de cálculo: Onde:
  • 24.
    é o módulode resistência plástico (mínimo) da seção em relação a x-x é a resistência ao escoamento do aço. E isolando na expressão, encontramos: Perfil escolhido W 530x82,0 kg/m Propriedades geométricas da seção d = 52,8 cm Ix = 47.569 cm4 A = 104,5 cm2 bf = 20,9 cmWx = 1.801,8 cm3 Aw = 50,2 cm2 tw = 0,95 cmZx = 2.058,5 cm3 rx = 21,34 cm tf = 1,33 cm h = d-2.tf = 50,1 cmry = 4,41 cm Módulo 4 : Edifícios estruturados em Aço - 2ª Parte - p2 Perfil escolhido W 530x82,0 kg/m
  • 25.
    Propriedades geométricas daseção d = 52,8 cm Ix = 47.569 cm4 A = 104,5 cm2 bf = 20,9 cm Wx = 1.801,8 cm3 Aw = 50,2 cm2 tw = 0,95 cm Zx = 2.058,5 cm3 rx = 21,34 cm tf = 1,33 cm h = d-2.tf = 50,1 cm ry = 4,41 cm DETERMINAÇÃO DA FORÇA CORTANTE RESISTENTE DE DIMENSIONAMENTO OK! Onde: para vigas sem enrijecedores. Então, a expressão que define a força cortante resistente de dimensionamento é dada por: (OK!) VERIFICAÇÃO DA FLAMBAGEM LOCAL – FLM E FLA
  • 26.
    Para as mesas(FLM) (OK!) Garante que não há instabilidade nas mesas da seção. Para a alma (FLA) (OK!) Garante que não há instabilidade na alma da seção. DETERMINAÇÃO DO MOMENTO FLETOR RESISTENTE DE CÀLCULO (confirmado, seção compacta) →
  • 27.
    OK, o perfilW 530x82,0 atende! Obs: Repare que a resistência da seção é 63% maior que a necessária. Quem comandou o dimensionamento, neste caso, foi a deformação. Foi necessária uma peça com inércia elevada para combater as deformações previstas. Estruturas com vãos até 6m para edifícios são mais econômicas. CÁLCULO DOS PILARES Para os pilares vale a mesma recomendação que foram feitas para as vigas: agrupá-los e dimensionar para os esforços máximos de cada grupo. No nosso estudo, porém, dimensionaremos apenas o pilar de maior carga. ELEMENTOS COMPRIMIDOS As cargas atuantes no pilar P1 podem ser calculadas através das reações das vigas V1 e V2 ou por área de influência. - Combinação Última Normal Obs: A cobertura, na maioria dos casos, contribui com menos carga que os pavimentos tipo. Em nosso exemplo, consideramos a cobertura igual ao pavimento tipo para simplificar os cálculos.
  • 28.
  • 29.
    Normalmente, nos casodas peças comprimidas, escolhe-se uma seção e verifica-se a sua estabilidade. Seja, então, o perfil W 250x89,0 kg/m. Propriedades geométricas da seção: Ag = 113,9 cm2 d = 26,0cm bf = 25,6cm tw = 1,07cm tf = 1,73cm rx = 11,18cm ry = 6,52cm h = d - 2 tf = 22,5cm DETERMINAÇÃO DA FORÇA RESISTENTE DE CÁLCULO Verificação da flambagem local da Alma Elementos AA – Possuem duas bordas longitudinais vinculadas (Caso 2, tabela F.1, Anexo F da Norma)
  • 30.
    Verificação da flambagemlocal das mesas Elementos AL – Possui uma borda longitudinal vinculada (Caso 4, tabela F.1, Anexo F da Norma) Já que alma e mesa estão dentro dos limites, Q = 1. Condições dos vínculos
  • 32.
    Fig3.j Valor do índicede esbeltez reduzido em relação aos dois eixos centrais de inércia. O valor de Ne usado é em relação ao eixo central de menor inércia, portanto a situação de maior instabilidade: Observe a importância da decisão do engenheiro projetista ao conceber a estrutura e de utilizar o através de Ky = 0,7 uma base engastada. Neste caso esta decisão resultou em = 0,36, que resultará em uma leve ponderação na capacidade resistente do pilar. O valor do índice de esbeltez reduzido mais desfavorável ficou dentro do limite indicando que o valor de X pode ser determinado na tabela 4 - Pag. 45. Verificação quanto à flambagem global
  • 33.
    FINALMENTE, (O PERFIL ATENDE!) CONTRAVENTAMENTOS Uma maneira eficiente de contraventar um edifício é com a utilização de um núcleo rígido de concreto armado que servirá como “caixa” para elevador e/ou escada. Estes núcleos geralmente possuem pelo menos três lados sem grandes aberturas, formando estruturas bastante rígidas, indeslocáveis, e capazes de impedir movimentações laterais e absorver esforços horizontais.