UNIVERSIDADE REGIONAL DE BLUMENAU
CENTRO DE CIÊNCIAS TECNOLÓGICAS
DEPARTAMENTO DE ENGENHARIA DE PRODUÇÃO E DESIGN
CURSO DE ENGENHARIA DE PRODUÇÃO

ESTÁGIO SUPERVISIONADO EM ENGENHARIA DE PRODUÇÃO:
MELHORIAS NO GERENCI AMENTO DE FERRAMENTA S DA ZEN S.A.

CÉSAR MOHR

BLUMENAU
2013
CÉSAR MOHR

ESTÁGIO SUPERVISIONADO EM ENGENHARIA DE PRODUÇÃO:
MELHORIAS NO GERENCIAMENTO DE FERRAMENTAS DA ZEN S.A.

Relatório de estágio curricular apresentado à
disciplina Estágio Supervisionado do curso de
Engenharia de Produção da Universidade
Regional de Blumenau, como requisito parcial
à conclusão do curso de Engenharia de
Produção.

Profa. Carina Henkels – Orientadora

BLUMENAU
2013
ESTÁGIO SUPERVISIONADO EM ENGENHARIA DE PRODUÇÃO:
MELHORIAS NO GERENCIAMENTO DE FERRAMENTAS DA ZEN S.A.

por

CÉSAR MOHR

Relatório de estágio curricular obrigatório realizado na ZEN S.A., no período de
25/03/13 a 01/07/13, cumprindo requisito parcial para conclusão do curso de Engenharia de
Produção da Universidade Regional de Blumenau – FURB, aprovado pela empresa
concedente de estágio, representada por:

Célio Brick, supervisor de estágio,

e pela Banca Examinadora formada pelos professores:

Profa. Carina Henkels – orientadora, FURB

Prof. André Bastos – avaliador, FURB.

Prof. Stephen Carpenter – avaliador, FURB.
AGRADECIMENTOS

Agradeço a meus pais Círio Mohr e Dilva Mohr por terem me apoiado e incentivado a
buscar aprender sempre mais, a estudar com prazer.
Minha gratidão aos professores, em especial a professora Carina Henkels, que me
orientou neste trabalho.
Ao supervisor de estágio Célio Brick e aos demais profissionais da ZEN S.A., meu
sincero agradecimento pela oportunidade de estagiar e pelo apoio prestado.
À minha esposa Camila, que soube compreender, incentivar, comemorar... Por tudo,
muito obrigado!
LISTA DE FIGURAS

Figura 1 – Empresa Zen S.A. ................................................................................................................. 11
Figura 2 – Organograma Hierárquico .................................................................................................... 14
Figura 3 – Divisões de mercado ............................................................................................................. 15
Figura 4 – Impulsores de partida ............................................................................................................ 16
Figura 5 – Polias com roda-livre para alternadores ................................................................................ 17
Figura 6 – Tensionadores ....................................................................................................................... 17
Figura 7 – Mancais do alternador ........................................................................................................... 18
Figura 8 – Fluxograma processo produtivo ............................................................................................ 20
Figura 9 – Suporte de usinagem ............................................................................................................. 25
Figura 10 – Inserto de usinagem ............................................................................................................ 25
Figura 11 – Ferramentas inteiriças ......................................................................................................... 26
Figura 12 – Fluxograma das ferramentas do gerenciamento.................................................................. 27
Figura 13 – Localização das ferramentas no software ........................................................................... 31
Figura 14 – Layout atual ........................................................................................................................ 39
Figura 15 – Layout proposto .................................................................................................................. 41
Figura 16 – Situação atual dos materiais ................................................................................................ 42
Figura 17 – Modelo de etiqueta para itens de estoque ........................................................................... 43
Figura 18 – Peça e macho laminador ..................................................................................................... 44
Figura 19 – Secção transversal mostrando o filete de rosca laminada ................................................... 44
Figura 20 – Ferramenta trocada em condições de uso (à esquerda) e desgastada (à direita) ................. 45
Figura 21 – Polia arraste......................................................................................................................... 50
Figura 22 – Interior da máquina ............................................................................................................. 50

Gráfico 1 – Consumo de ferramentas no Focco ..................................................................................... 35
Gráfico 2 – Consumo de ferramentas no GPF ....................................................................................... 35
Gráfico 3 – Variação do torque pelo comprimento da rosca .................................................................. 48
LISTA DE QUADROS

Quadro 1 – Histórico da Empresa Zen S.A. de 1960-2013. ................................................................... 12
Quadro 2 – Check list para homologação de ferramentas ...................................................................... 30
Quadro 3 – Torque com ferramenta desgastada e variação do sobremetal ............................................ 46
Quadro 4 – Torque com ferramenta nova e variação do sobremetal ...................................................... 46
Quadro 5 – Torque com ferramenta desgastada e sobremetal mediano ................................................. 47
Quadro 6 – Tempos da operação atual ................................................................................................... 51
Quadro 7 – Tempos da operação proposta ............................................................................................. 51
SUMÁRIO
1 INTRODUÇÃO .................................................................................................................. 10
1.1 APRESENTAÇÃO DA EMPRESA .................................................................................. 10
1.1.1 Visão, Missão e Valores ............................................................................................... 13
1.1.2 Organograma Hierárquico ............................................................................................ 13
1.1.3 Mercados ....................................................................................................................... 15
1.1.4 Qualidade ...................................................................................................................... 15
1.1.5 Produtos ........................................................................................................................ 15
1.2 OBJETIVOS ...................................................................................................................... 18
1.2.1 Objetivo Geral .............................................................................................................. 18
1.2.2 Objetivos Específicos ................................................................................................... 18
2 ATIVIDADES DESENVOLVIDAS ................................................................................. 19
2.1 FLUXOGRAMA DO PROCESSO PRODUTIVO ........................................................... 19
2.1.1 Posição do Gerenciamento de Ferramentas dentro do processo produtivo .................. 21
2.2 PRINCIPAIS SETORES PRODUTIVOS DA EMPRESA ............................................... 21
2.2.1 Setor de conformação ................................................................................................... 22
2.2.2 Setor de usinagem ......................................................................................................... 22
2.2.3 Setor de tratamento térmico .......................................................................................... 23
2.2.4 Setor de montagem ....................................................................................................... 24
2.3 LAYOUT E DESCRIÇÃO DO LOCAL DE ESTÁGIO: O GERENCIAMENTO DE
FERRAMENTAS DE USINAGEM ......................................................................................... 24
2.3.1 Apresentação dos tipos de ferramentas estocadas ........................................................ 25
2.3.2 Fluxograma das ferramentas do gerenciamento ........................................................... 26
2.4 OPORTUNIDADES DE MELHORIAS ........................................................................... 28
2.4.1 Homologação de ferramentas ....................................................................................... 28
2.4.2 Cadastros das ferramentas ............................................................................................ 31
2.4.2.1 Dificuldade na localização dos materiais...................................................................... 31
2.4.2.2 Impossibilidade de gerar ordem de compra automática das ferramentas ..................... 32
2.4.2.3 Falta de ferramentas pelo estoque mal dimensionado .................................................. 33
2.4.2.4 Erros nas baixas GPF para Focco ................................................................................. 34
2.4.3 Organização e identificação do local ............................................................................ 36
2.4.3.1 Eliminação dos materiais sem consumo ....................................................................... 36
2.4.3.2 Alteração do layout ....................................................................................................... 38
2.4.3.3 Identificação das ferramentas ....................................................................................... 42
2.4.4 Redução de custos baseado na análise do consumo das células ................................... 43
2.4.4.1 Melhorar aproveitamento dos machos laminadores ..................................................... 44
2.4.4.2 Ferramenta conjugada ................................................................................................... 49
3 CONCLUSÃO .................................................................................................................... 52
REFERÊNCIAS ..................................................................................................................... 53
APÊNDICES ........................................................................................................................... 54
APÊNDICE A – FORMULÁRIO PAI – PROPOSTA DE ALTERAÇÃO DE
INSERTOS .............................................................................................................................. 55
1

INTRODUÇÃO
O estágio ocorreu na empresa Zen S.A., especializada em impulsores de partida da

área automotiva.
A Zen S.A. está em processo de implantação do Gerenciamento de Ferramentas de
usinagem em parceria com empresa terceirizada. A empresa contratada entra com o apoio
técnico e consultoria e a Zen com a mão de obra e estrutura. Este projeto objetiva redução de
custos dos processos através da melhoria dos processos, do aumento da produtividade e da
redução do consumo de ferramentas. Em segundo estágio, a Zen espera pagar ao
Gerenciamento por peça produzida, e a responsabilidade dos custos de produção com
ferramental é do contratado.
O estágio foi realizado no Gerenciamento de Ferramentas, onde foram aplicados
conhecimentos e ferramentas aprendidas ao longo do curso e no ambiente de trabalho assim
como no decorrer do estágio.
Este trabalho apresenta as atividades de organização do sistema e do estoque físico do
ferramental, bem como de duas propostas de melhorias no processo produtivo.

1.1

APRESENTAÇÃO DA EMPRESA
Com uma área construída de mais de trinta e três mil metros quadrados cerca de mil

funcionários, a Zen S.A. destaca-se como uma das mais importantes indústrias do ramo de
autopeças do país.
11

Figura 1 – Empresa Zen S.A.
Fonte: Empresa Zen S.A. (2013).

Presença mundial com exportação para países de todos os continentes e milhões de
peças produzidas a cada ano seguindo os mais rigorosos padrões de qualidade, a ZEN vem
construindo uma história de sucesso. São 53 anos de uma trajetória repleta de vitórias e de
desafios superados. Fundada em 1960 pelos irmãos Nelson e Hylário Zen, nascidos em
Brusque (SC), a empresa sempre pautou sua atuação baseada em valores sólidos, que
permeiam a cultura da organização.
1960 - Fundada pelos irmãos Hylário e Nelson Zen, uma pequena fábrica de peças para
rádio, ocupava um galpão de 30 m2 em São Paulo.
1963 - Início da produção de Impulsores de Partida.
1973 - Transferência da Zen S.A. para a cidade de Brusque, terra natal de seus fundadores.
Situada no Vale do Itajaí, em Santa Catarina, a cidade é altamente industrializada e
um importante polo têxtil do país.
1975 - Início da aplicação de tecnologia de conformação maciça a frio para a confecção dos
principais componentes dos impulsores.
1976 - Primeira exportação direta dos produtos da Zen.
1984 - Implantação de fornos de atmosfera controlada para tratamento térmico.
1985 - Fundação de Centro de Treinamento Técnico Operacional Zen (CTZ).
1986 - Fornecimento de peças para montadoras de veículos.
12

1989 - Implantação da linha de mancais, polias, ventoinhas e porta escovas aplicados em
alternadores, dínamos e motores de partida.
1991 - Aquisição de vários centros de torneamento CNC.
1993 - Início da implantação do Programa de Qualidade Total Zen (QTZ).
1995 - Aquisição de vários centros de usinagem CNC e prensas automatizadas.
1996 - Obtenção do certificado ISO 9001 pelo ABS-QE.
1998 - Conquista do certificado QS 9000, e Joint-Venture entre Zen S.A. e Delco Remy
International (surge a Delco Remy Brasil).
2002 - Conquista do Certificado ISO/TS 16949.
2003 - Aquisição de prensas de conformação horizontal progressiva.
2004 - A IRMÃOS ZEN S.A. passa a se chamar ZEN S.A. Indústria Metalúrgica.
2005 - Acontece a instalação da Unidade de Alumínio e Ferro Fundido (UNAFF), hoje
ZEN Aluminium.
2006 - Lança a Polia do alternador com sistema de roda livre. Inicia a implantação dos
conceitos Lean Manufacturing.
2008 - É lançada no mercado a planetária.
2009 - Recebe certificado que nomeia Fornecedora Preferencial BOSCH. Conquista o
certificado ISO 14001, comprometida com a sustentabilidade. Recebe Premiação
REMY por qualidade superior dos produtos. Certificado de uma das empresas mais
inovadoras do sul do Brasil, realizado pela Revista AMANHÃ e prêmio Ser
Humano SC-2009 por reconhecimento em seus projetos sociais realizado pela
ABRH.
2010 - ZEN comemora 50 anos de fundação.
2011 - Fornecimento de rodas de pulso para freios ABS da GM.
2012 - Aquisição de vários robôs para automatização da alimentação das máquinas.
Quadro 1 – Histórico da Empresa Zen S.A. de 1960-2013.
Fonte: Empresa Zen S.A. (2013).
13

1.1.1 Visão, Missão e Valores
Visão
Ser instrumento para o progresso sustentável que conquiste a preferência de nossos
clientes e o orgulho da nossa equipe, através da inovação, qualidade e excelência operacional.
Missão
Desenvolver, produzir e fornecer componentes e sistemas para veículos automotores,
para os segmentos original e reposição, com geração de valor para o negócio, clientes e
sociedade.
Valores


Comprometimento



Sinceridade



Integridade



Senso de Urgência



Empreendedorismo

1.1.2 Organograma Hierárquico
Abaixo é apresentada a estrutura administrativa principal da empresa.
Fonte: Elaborado pelo autor.

Figura 2 – Organograma Hierárquico

14
15

1.1.3 Mercados
A ZEN exporta para mais de 60 países. Apesar da forte atuação mundial, a empresa
cresce no mercado brasileiro, aquecido nos últimos anos pelo aumento da produção de
veículos.

Figura 3 – Divisões de mercado
Fonte: Empresa Zen S.A. (2013).

1.1.4 Qualidade
A qualidade é desenvolvida com o comprometimento das pessoas e o suporte da alta
tecnologia para garantir a reconhecida confiabilidade que os produtos da ZEN conquistaram
mundialmente.
As certificações ISO 9001 e ISO TS-16949 comprovam o atendimento aos rigorosos
padrões de qualidade. Mas a ZEN evolui, extrapola os requisitos das normas e faz mais, para
que a qualidade não seja apenas uma exigência do mercado, mas um diferencial.
1.1.5 Produtos
A Zen S.A. atua na fabricação de Impulsores de Partida, Planetárias, Polias de Roda
Livre e Rígidas, para aplicação em motores de partida e alternadores, além desses produtos
possuímos a linha de Tensionadores para linha mecânica e Placas de Partida e Tensor de
corrente para o mercado de moto peças. A empresa conta também com a estrutura da ZEN
ALUMINIUM que fabrica mancais para alternadores e motores de partida em alumínio e
ferro fundido e oferece seus serviços de injeção a terceiros.
16

Impulsores de partida

Figura 4 – Impulsores de partida
Fonte: Empresa Zen S.A. (2013).

A ZEN é líder mundial na fabricação de impulsores de partida. São aproximadamente
800 modelos para as mais diversas aplicações no mercado original e de reposição. Na linha de
impulsores Maxitork, aplicado em veículos pesados com alta capacidade de torque, a ZEN
detém uma grande parcela de participação no mercado mundial. Nos impulsores
convencionais se destaca de seus concorrentes pela qualidade. Para atender a linha náutica, a
ZEN também possui Impulsores de Partida para aplicação em Jet Ski.
17

Polias para alternadores

Figura 5 – Polias com roda-livre para alternadores
Fonte: Empresa Zen S.A. (2013).

A ZEN produz diversos modelos de polias, de aço e ferro fundido, rígidas e com
sistema de roda livre. As polias com sistema de roda livre têm grande potencial de mercado e
por este motivo a empresa vem investindo na melhoria do seu desempenho bem como na
otimização dos processos de fabricação.
Planetárias, Tensionadores e Atuadores de Embreagem

Figura 6 – Tensionadores
Fonte: Empresa Zen S.A. (2013).

A ZEN utiliza um processo único e patenteado na produção da Planetária, que acarreta
em maior robustez do sistema por apresentar têmpera total do eixo. A linha de tensionadores
foi lançada em 2009, e em m seguida foi lançado os atuadores de embreagem, marcando a
entrada no segmento mecânico. Para motocicletas a Zen produz tensores de corrente com
sistema de trava anti-recuo e Placa de Partida com patente requerida. Apresenta maior
robustez, partidas mais suaves e menos atrito.
18

Mancais do alternador e peças em alumínio injetado

Figura 7 – Mancais do alternador
Fonte: Empresa Zen S.A. (2013).

Os Mancais em alumínio são injetados e usinados na própria ZEN. Também produz
peças em alumínio injetado para diversas aplicações. Exemplos: base do queimador de fogão,
mancais de motores de partida e outras variedades de produtos.

1.2

OBJETIVOS

1.2.1 Objetivo Geral
Melhorar a organização e o controle do estoque no Gerenciamento de Ferramentas e
estudar alternativas técnicas para redução do consumo de ferramentas.
1.2.2 Objetivos Específicos


Propor ações para minimizar os erros de estoque.



Melhorar a identificação das ferramentas.



Indicar a solução para as principais dificuldades relacionadas às atividades
informatizadas do gerenciamento.



Desenvolver mecanismo para garantir a realização das atividades de
implantação de uma nova ferramenta.



Elaborar uma sistemática para retirar do estoque os itens sem consumo.



Identificar oportunidades de melhorias para redução de custos com
ferramentas.
2

ATIVIDADES DESENVOLVIDAS
Neste capítulo será descrito o processo produtivo da empresa e as atividades de

estágio.

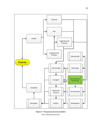
2.1

FLUXOGRAMA DO PROCESSO PRODUTIVO
Para facilitar o entendimento geral do processo produtivo da Zen S.A. foi

desenvolvido um fluxograma apresentado abaixo.
20

Figura 8 – Fluxograma processo produtivo
Fonte: Elaborado pelo autor.
21

2.1.1 Posição do Gerenciamento de Ferramentas dentro do processo produtivo
Destacado em verde no fluxograma anterior, representado pela figura 8, está o
Gerenciamento de Ferramentas. Trata-se de um setor de apoio onde seu principal cliente é a
usinagem Zen Sistemas e Zen Aluminium e também a ferramentaria.
Este foi o local do estágio e será mais bem detalhado na sequência deste relatório.

2.2

PRINCIPAIS SETORES PRODUTIVOS DA EMPRESA
Os principais setores de manufatura da empresa são a conformação, a usinagem, o

tratamento térmico e a montagem. Também possui outros considerados setores
intermediários, que tem o papel de alimentar e suprir as necessidades do dia a dia do sistema
produtivo da empresa. Os considerados setores intermediários são a ferramentaria, o
laboratório de metrologia, o laboratório de metalografia, a manutenção, assim como os setores
de recebimento, estoque de semiacabados, estoque de componentes, almoxarifado de
ferramental, almoxarifado central e o gerenciamento de ferramentas. Este último possui as
ferramentas de usinagem e é o setor onde foi realizado o estágio.
O cliente faz o pedido ao setor de Vendas e este repassa a informação ao PCP para
programação da produção, ao setor de Compras para aquisição de matéria prima e à
Engenharia de Produto que dispõe a estrutura do produto e seus componentes. A informação
da Engenharia de Produto chega à Engenharia de Processos que define as etapas e o
ferramental para produzir as peças. Com os dados dos setores acima o produto entra em
produção seguindo o principal fluxo que é pela Conformação, Usinagem, Tratamento
Térmico, Retífica, Montagem e então disposto na Expedição para entrega ao Cliente.
Os setores de apoio atuam principalmente através de ordens de serviço abertas pelos
setores de produção. A manutenção é responsável pela correção e prevenção das falhas das
máquinas, e Metrologia pela manutenção e controle dos instrumentos de medição, a
Ferramentaria pela produção e reparo do ferramental e a Metalografia pela análise do aço dos
produtos. O Recebimento, o Almoxarifado Central e o Gerenciamento de Ferramentas
trabalham com os produtos comprados, sendo que no Gerenciamento de Ferramentas é
estocado apenas as ferramentas de corte utilizadas na Usinagem. As ferramentas de
22

conformação e demais ferramentas fabricadas são estocadas no Almoxarifado de Ferramental
localizado ao lado da ferramentaria para facilitar a logística e o controle.
Abaixo é explicado com mais detalhes os principais setores produtivos da empresa.
2.2.1 Setor de conformação
O setor de conformação é onde ocorrem as primeiras transformações das peças. O aço
que chega em rolos de fio máquina ou em barras laminadas de 6 metros maciças em várias
bitolas, são cortados e conformados de acordo com as características de cada produto.
Dependendo das características e dimensionamentos do produto, a conformação já consegue
deixar a peça pronta, ou parte dela pronta, não necessitando de usinagem posterior.
Na conformação as ordens de produção são enviadas pelo PCP, a matéria prima bruta
que se encontra estocada é requisitada, cortada em blanques e conformada, seguindo várias
etapas de prensagem, intercalada por operações de recozimento e fosfatização para manter a
qualidade do aço e evitar trincas.
As prensas são do tipo mecânicas e hidráulicas, verticais e horizontais, simples e
vários estágios, e possuem diversas capacidades de carga dependendo da necessidade de
aplicação. Como as prensas executam diversas operações de diversos fluxos de processo, a
disposição do layout das máquinas é individual, exceto em alguns casos em que peças de
maior demanda foram agrupadas e ocupou a capacidade produtiva das máquinas, onde foi
instalado robôs para alimentá-las. Já as prensas horizontais multi-estágios são capazes de
receber a matéria prima em forma de bobina e disponibilizar as peças semiacabadas
necessitando apenas operações de usinagem indispensáveis ao produto.
Ainda no setor de conformação, também são estampadas peças provenientes de
chapas.
Na conformação as peças são codificadas como semiacabadas e após serem
conformadas são encaminhadas para um estoque intermediário, onde aguardarão para serem
usinadas.
2.2.2 Setor de usinagem
O setor de usinagem é responsável por dar a forma final na peça conforme
especificações do produto. Nos casos onde a conformação não consegue atingir o formato
23

final do produto, o material excedente após a conformação é retirado por usinagem. A maior
parte das máquinas são tornos de alta tecnologia, automáticas com comando CNC e utilizam
ferramentas de corte de última geração com alta performance. As ferramentas de usinagem
estão alocadas no almoxarifado do gerenciamento de ferramentas e são disponibilizadas para
uso pelos gerenciadores.
Na usinagem as ordens de fabricação são para a produção de componentes e estes
componentes estão relacionados a um semiacabado produzido na conformação e
disponibilizado no estoque intermediário. As operações de usinagem podem ser de
torneamento, fresamento, brochamento, retífica ou a conjugação de diversos deles.
O layout principal da usinagem é celular em U, com uma entrada e uma saída e fluxo
contínuo entre as operações. Deste modo obtém-se menor movimentação, menor estoque em
processo e melhor aproveitamento da mão de obra.
No setor de usinagem também existe a área de retífica, usada para as peças que
necessitam precisão dimensional e acabamento que não são alcançadas nas operações de
torneamento. A retificação é realizada nas peças temperadas, ou seja, as peças que já foram
processadas no tratamento térmico. Também existem diversos casos em que as peças
temperadas passam por uma nova operação de torneamento, utilizando ferramentas
especialmente desenvolvidas para a remoção de material endurecido.
2.2.3 Setor de tratamento térmico
As peças provenientes do setor de usinagem são encaminhadas para o setor de
tratamento térmico para que a estrutura e superfície ganhem dureza e propriedades mecânicas
de acordo com as especificações de cada produto. As peças temperadas passam por operações
de acabamento onde são jateadas e oleadas.
Os fornos são elétricos e a gás GLP e a têmpera é realizada em banho de óleo.
Conforme descrito anteriormente, algumas peças retornam para operação adicional de
torneamento ou retífica, as demais seguem direto para o estoque de componentes, onde
aguardarão serem retirados para a montagem.
O setor de tratamento térmico também é responsável pelo recozimento das peças entre
as etapas de conformação a frio.
24

2.2.4 Setor de montagem
As peças/componentes acabados que estão armazenadas no estoque de componentes
são montadas de acordo com cada projeto e destinadas para a expedição. A maior parte dos
componentes são fabricados internamente, alguns terceirizados e outros comprados da
indústria nacional ou importados.
O setor é organizado em linhas onde são realizadas operações de montagem, medição
e embalagem dos produtos. Cada linha monta vários produtos que possuem operações
similares, os quais possibilitam a utilização total ou parcial do maquinário e da mão de obra
da linha.
Os produtos montados seguem para o setor de expedição para posterior envio ao
cliente.

2.3

LAYOUT E DESCRIÇÃO DO LOCAL DE ESTÁGIO: O GERENCIAMENTO DE
FERRAMENTAS DE USINAGEM
O Gerenciamento de Ferramentas trata-se de um setor onde é feito todo o controle das

ferramentas de corte utilizadas na usinagem. Neste local são armazenadas as ferramentas de
usinagem que anteriormente estavam dispostas no Almoxarifado central. Quando as
ferramentas estavam no almoxarifado central os operadores se deslocavam do posto de
trabalho para buscar as ferramentas, e o controle do consumo não era de responsabilidade dos
almoxarifes, ou seja, com o gerenciamento o controle das ferramentas ficou como
responsabilidade das pessoas que as disponibilizam, possibilitando assim melhor controle dos
custos.
O gerenciamento é compartilhado, pois a mão de obra é da Zen e a consultoria, apoio
técnico e sistema informatizado é da Seco Tools, um fornecedor de ferramentas que presta
consultoria em gerenciamento. Neste local as ferramentas são estocadas, separadas e
entregues à produção, recolhidas, avaliadas o uso e desgaste e destinadas para
reaproveitamento, recondicionamento, reciclagem ou descarte.
Além disso, os colaboradores deste setor são responsáveis por desenvolver atividades
de controle e melhoria das ferramentas e processos, visando redução de custos e ganhos
financeiros.
25

Neste almoxarifado estão alocados 766 produtos, com a quantidade de
aproximadamente 10 mil ferramentas e um valor de 500 mil reais. Para gestão do estoque a
Zen utiliza um software do fornecedor de ferramentas Seco Tools, denominado GPF que
significa Gestão de Processos e Ferramentas. Nele são feitas as ordens de compra para
reposição, os recebimentos, as saídas, as tratativas de desvio.
2.3.1 Apresentação dos tipos de ferramentas estocadas
Suporte: é fixado na máquina e possibilita a troca rápida do inserto intercambiável.
São diversos modelos para usinagem interna e externa.

Figura 9 – Suporte de usinagem
Fonte: Imagem da internet.

Inserto: é fixado no suporte e é o responsável pela remoção de material da peça.
Possuem diversas geometrias, classes e quebra cavacos.

Figura 10 – Inserto de usinagem
Fonte: Imagem da internet.
26

Ferramentas inteiriças: brocas, fresas e machos de aço rápido e metal duro.

Figura 11 – Ferramentas inteiriças
Fonte: Imagem da internet.

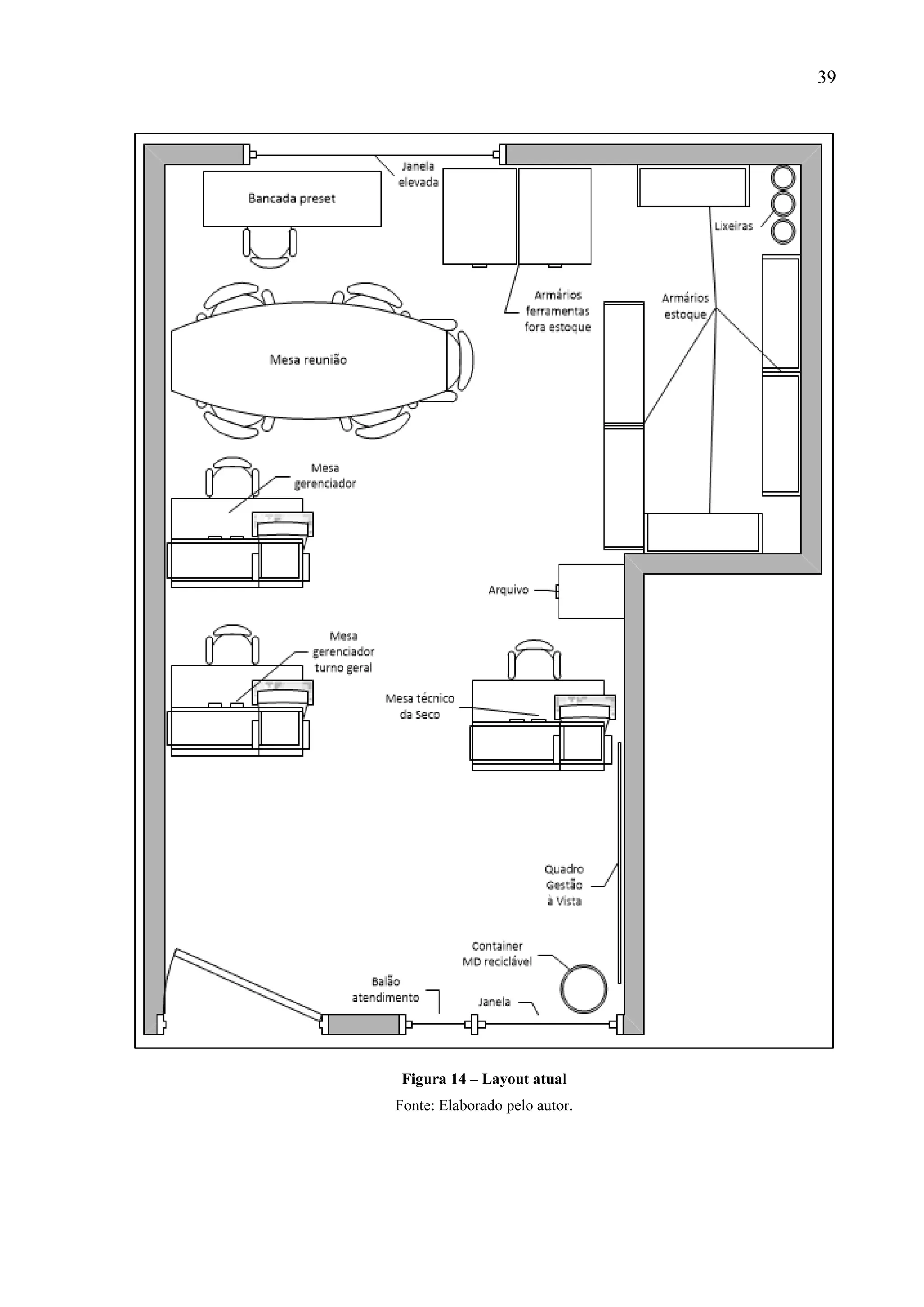
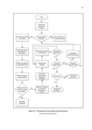
2.3.2 Fluxograma das ferramentas do gerenciamento
Para entender a sistemática do trabalho dos gerenciadores, foi acompanhado o dia a
dia e então desenvolvido o fluxograma abaixo, que mostra o caminho seguido pela ferramenta
de usinagem estocada no Gerenciamento de Ferramentas.
27

Figura 12 – Fluxograma das ferramentas do gerenciamento
Fonte: Elaborado pelo autor.
28

Acompanhando o processo e visualizando o fluxograma foi possível identificar
diversas oportunidades de melhoria e propor ações para alcançar melhores resultados.

2.4

OPORTUNIDADES DE MELHORIAS
Abaixo a descrição do problema encontrado e apresentação da solução realizada ou

proposta.
2.4.1 Homologação de ferramentas
Situação atual:
Para a implantação ou substituição de uma ferramenta é necessária a realização de
testes, utilização de lote piloto, e após isso, ser homologada em uma reunião com um comitê
formado pelos gerenciadores, pelo supervisor da Engenharia de Processos, por representante
da controladoria e custos e por um analista de compras.
Para avaliação da viabilidade de aprovação do novo item, é usada uma planilha
chamada “PAI”, que significa Proposta de Alteração de Insertos, onde é comparado o item
atual com o proposto, mostrando os ganhos financeiros da proposta. Nesta planilha são
considerados três fatores principais: consumo de ferramentas, tempo de usinagem e
quantidade de refugos relacionados às trocas de inserto.
Perdas:
Mesmo com todo este cuidado, algumas ferramentas homologadas não eram
oficializadas nos documentos relacionados a elas ou que ao implantar na usinagem gerava
diversos problemas que faziam com que o rendimento caísse inviabilizando o seu uso.
As operações de usinagem possuem um documento denominado Plano de Montagem
no qual estão descritas as ferramentas e demais informações para o setup da máquina. Neste
plano de montagem é colocado um código SU para Suporte de usinagem e IN para Inserto de
usinagem, e a descrição técnica do fornecedor da ferramenta está disponível em uma Tabela
Complementar. Como a Tabela Complementar não era atualizada, a documentação do
processo também ficava errada, possibilitando ocorrência de erros de regulagem de máquina
com diversas consequências.
29

A queda de rendimento ocorria porque nos testes, algumas vezes, eram alterados os
parâmetros de corte para otimização do desempenho da ferramenta, mas que no momento da
homologação não era considerada a necessidade de padronização dos novos parâmetros para
as demais peças e máquinas, nem planejada a disponibilidade de mão de obra para a
realização desta tarefa. Com os parâmetros incorretos o desempenho da ferramenta reduzia
causando aumento dos gastos e geração de sucatas.
Situação proposta:
Para garantir que na homologação sejam contempladas todas as variáveis relacionadas
à implantação da nova ferramenta, foi proposto o uso de um check list complementar à PAI –
Proposta de Alteração de Insertos, conforme quadro 2. No apêndice A pode ser visto uma PAI
completa.
No campo implementação da alteração são verificadas a necessidade de alteração da
documentação, dos cadastros no sistema e no programa de usinagem CNC. Dessa forma, as
principais causas das perdas que ocorriam na implantação da nova ferramenta são verificadas
a fim de definir ações e responsáveis para realiza-las.
Nos campos de disposição das ferramentas a utilização do chek list proporciona
também a verificação do material que está sendo substituído, evitando que a quantidade
estocada fique acima da nova necessidade ou até mesmo que o material que não será mais
consumido após a mudança do processo fique parado e obsoleto no estoque, gerando perdas
financeiras pelo aumento dos custos com estoques e inventário.
30

IMPLEMENTAÇÃO DA ALTERAÇÃO
ALTERAR PROGRAMAS
ALTERAR FOLHA DE OPERAÇÃO
ALTERAR PLANO DE MONTAGEM
ALTERAR FMEA
ALTERAR PLANO DE CONTROLE
ALTERAR CUSTOS (FINANCEIRO)

ALTERAR CADASTRO NO BDZ
ALTERAR CADASTRO NO FOCCO
ALTERAR TABELA DE INSERTOS TC-23.000

ALTERAR TABELA DE INSERTOS TC-22.000

ALTERAR TABELA DE ACESSÓRIOS TC-67.000

DISPOSIÇÃO DA FERRAMENTA PROPOSTA
CADASTRAR NO ESTOQUE (FORGQ123)

REDIMENSIONAR PARA QUANTIDADE ABAIXO

QTDE. EM ESTOQUE NA ZEN:

0 Peças

QTDE. EM ESTOQUE NO FORNCEDOR:

0 Peças

DISPOSIÇÃO DA FERRAMENTA ANTERIOR
REDIMENSIONAR PARA QUANTIDADE ABAIXO

DEVOLVER

SUCATAR

QTDE. EM ESTOQUE NA ZEN:

0 Peças

QTDE. EM ESTOQUE NO FORNCEDOR:

CONSUMIR E INATIVAR

0 Peças

OBS.: MATERIAL QUE NÃO TERÁ MAIS CONSUMO NÃO PODERÁ PERMANECER EM ESTOQUE

COMENTÁRIOS:

CARGO

APROVAÇÃO
NOME

VISTO / DATA

GERENCIADOR
SUPERVISOR PRODUÇÃO
SUPERVISOR PROCESSO
CONTROLADORIA

Quadro 2 – Check list para homologação de ferramentas
Fonte: Elaborado pelo autor.
31

2.4.2 Cadastros das ferramentas
As ferramentas do gerenciamento possuem cadastro no software de Gestão de
Processos e Ferramentas – GPF. Nele é possível, dentre inúmeras opções, localizar o
endereçamento de estocagem e realização da ordem de compra automática.
No início do estágio, a equipe se deparava com diversos problemas, que geravam
perda de eficiência do seu trabalho, estresse, falta de ferramentas e consequente parada de
máquina, além dos gastos com fretes urgentes.
Nos subtítulos a seguir serão descritos os problemas, suas causas e as ações tomadas.
2.4.2.1 Dificuldade na localização dos materiais
Como a quantidade de itens é grande, para localizar o material desejado é utilizada a
busca do endereço no sistema. Essa localização era dificultada pelo uso incorreto do filtro de
busca. Na figura 14 é demostrado um exemplo de busca pela qual é possível verificar que
existem diversos itens similares, que se a descrição não estiver num formato padronizado e
selecionado o correto método de filtro, fica muito difícil e demorada a localização do
material.

Figura 13 – Localização das ferramentas no software
Fonte: Elaborado pelo autor.
32
Como era utilizado o método de filtro de busca do tipo “começa com”, se fosse
digitado já no primeiro caractere um valor errado, não era mais possível localizar o produto.
Como a ferramenta não era localizada o gerenciador passava a supor que a ferramenta não
estava cadastrada no sistema que era recente, passou-se a realizar um novo cadastramento.
Isso gerou um efeito muito prejudicial, pois passou a dificultar mais a localização, além de
gerar inúmeros furos de estoque, visto que um fazia a saída do item no código “x” e outro no
código “y”.
Medidas adotadas:
Foram então padronizados os cadastros e passado a utilizar o método de filtro
“contém”, através do qual é possível localizar o item inserindo um ou mais caracteres em
sequência de qualquer parte da descrição. Uma ação extremamente simples, mas que gerou
um grande benefício.
Foi proposto, mas ainda não implementado, o acréscimo do código do plano de
montagem e do código contábil do Focco (ERP) na descrição do item. Com isso, qualquer que
seja a informação trazida pelo cliente, o gerenciador conseguirá localizar rapidamente o item
desejado.
2.4.2.2 Impossibilidade de gerar ordem de compra automática das ferramentas
A geração de ordens de compra automática é uma grande vantagem do sistema, pois
reduz o tempo da atividade, evitando ter de verificar item a item do estoque físico para
identificar a necessidade de reposição. Como não havia identificação no armazenamento
físico, a atividade não era precisa, faltavam alguns itens e outros eram comprados
excessivamente.
A verificação era feita no estoque físico identificando os itens que estavam com
estoque baixo, estipulava-se uma quantidade a comprar pelo conhecimento do colaborador e
então cadastrava a compra do item no sistema. Após isso, o analista de compras enviava o
pedido aos fornecedores. Como o estoque não tinha informação das quantidades mínima e
quantidade a repor, itens com baixo consumo e sem necessidade de reposição eram inchados
com a compra de mais peças e itens com consumo alto falavam ferramentas pela compra
abaixo do necessário. A demora na realização da atividade se dava pela forma manual que era
realizada.
33

Através da ordem de compra automática o gerenciador executa uma rotina do software
GPF que calcula a quantidade de material que necessita ser comprada para que o estoque seja
reposto nas quantidades predefinidas. Essa rotina é executada semanalmente e gera um
relatório contendo o código, a descrição, o fornecedor e as quantidades de cada ferramenta, e
este relatório é enviado ao analista de compras que gera o pedido e envia aos fornecedores.
Porém, as ordens de compras automáticas não funcionavam devido à ocorrência
mensagens de erro no sistema. Consultando a equipe foi possível identificar que existiam
erros no cadastramento das ferramentas que eram a causa dos problemas, pois impediam o
correto funcionamento do sistema. Havia falta ou erro de: descrição, tipo, dimensionamento
do estoque, código de integralização com o Focco (ERP), tempo de reposição, unidade de
medida, endereço, preço, fornecedor e centro de custo de alocação.
Medidas adotadas:
O estagiário elaborou uma planilha mestre que serviu de base para a revisão do
sistema de gerenciamento e do estoque físico. Essa planilha continha um relatório exportado
para Excel de todos os cadastros do software GPF. Trabalhando os dados e encontrando as
duplicações de endereço e de código contábil, foi possível identificar e resolver as
duplicações e os erros de cadastros, pois em sequência os itens eram revisados e marcados o
status como revisado.
Após a conclusão da revisão havia sido inativado 134 itens que estavam duplicados.
Trata-se de uma quantidade extremamente alta, 17,5% dos itens eram duplicados. Foi
solicitado à Seco Tools para que providencie a exclusão desses cadastros que, apesar de
inativos, continuam poluindo o banco de dados, e os usuários da Zen não têm permissão para
excluir.
2.4.2.3 Falta de ferramentas pelo estoque mal dimensionado
Para o correto funcionamento das compras automáticas, o estoque deve estar acurado e
os pontos de reposição corretamente dimensionados. O ponto de reposição é a quantidade de
ferramentas em que passa a ser necessário comprar mais material para evitar a falta. A
quantidade a repor é o tamanho do lote de ferramentas que deve ser comprado de cada vez.
Com as ordens de compra automáticas, surgiu um novo problema com consequências
semelhantes aos da compra manual: a falta de material pelo mau dimensionamento dos pontos
34

de reposição do estoque. Até aquele momento os gerenciadores não se atentavam aos pontos
de reposição que existia no sistema porque não eram utilizados.
Medidas adotadas:
Para corrigir o sistema, foi gerado um relatório de consumo dos últimos 6 meses. Para
os itens Standards, o ponto de reposição reserva estoque para 3 semanas do consumo médio
dos últimos 6 meses. Para os itens especiais com prazo de entrega de 30 dias o ponto de
reposição reserva estoque para 6 semanas. Demais exceções foram definidas caso a caso. Essa
metodologia foi sugerida pela Seco Tools pela experiência de gerenciamento em outras
grandes empresas como Eaton e Mahle, do interior de São Paulo.
Os valores também foram inseridos na planilha mestre para a geração de etiquetas para
gestão visual do estoque físico. Os itens que não tiveram consumo nos meses contemplados
no relatório ficaram para uma segunda etapa de revisão, com prazo para final de junho.
Foi sugerido à equipe para no futuro aplicar o modelo de lote econômico, que leva em
consideração o custo de obtenção e o custo de armazenagem. Na evolução do gerenciamento
que é algo novo na empresa, o dimensionamento será revisado com frequência maior, levando
em consideração as demandas produtivas, visto que os processos estão sendo mapeados e será
possível saber quantas ferramentas serão necessárias para produzir cada produto da usinagem.
No momento o trabalho está ainda na base, com diversos problemas básicos de ordem prática,
onde se julgou mais conveniente trabalhar em melhorias de processo onde os ganhos são mais
relevantes.
O software GPF também permite executar as compras de ferramentas de baseada na
demanda dos produtos que estão programados para produzir na usinagem. Isso será possível
após o cadastramento das ferramentas e da sua vida útil para cada peça.
2.4.2.4 Erros nas baixas GPF para Focco
No início do período de estágio, as saídas de ferramentas eram alimentadas no GPF
(sistema do gerenciamento) e posteriormente necessitavam ser alimentadas novamente no
sistema Focco (sistema ERP da Zen). Esse processo era todo manual, pois os dois sistemas
não se comunicavam. As baixas manuais duplicadas eram demoradas e passíveis de erros.
Atrasos na alimentação do Focco no fechamento do mês causavam distorções nos custos, pois
35

as requisições passavam a ser alimentadas somente no mês posterior, logo, os indicadores
baseados no Focco ficavam distorcidos e prejudicavam as decisões gerenciais.
Os gráficos 1 e 2 mostram o consumo de ferramentas pelo Focco e GPF
respectivamente. Nota-se que o mês de março teve grande parte das saídas apontadas no mês
de abril, pois o Focco foi fechado pela controladoria e a movimentação foi baixada no mês
seguinte. O consumo varia mês a mês pelo volume de produção e isso é normal, mas o que se
pode notar comparando-se os gráficos é a diferença no mesmo mês entre os valores do
software GPF e do Focco (ERP) ocasionado pelo atraso nas baixas das ferramentas.

Gráfico 1 – Consumo de ferramentas no Focco
Fonte: Elaborado pelo autor.

Gráfico 2 – Consumo de ferramentas no GPF
Fonte: Elaborado pelo autor.
36

Medidas adotadas:
Foi solicitado ao estagiário providenciar, juntamente com o setor de TI da Zen, uma
maneira de integração, que deveria contar também com a atuação da TI da Seco Tools. O
trabalho de programação logicamente foi dos especialistas em informática, ficando o
estagiário como líder da ação e intermediador, responsável pelo fornecimento de informações
do gerenciamento que fossem relevantes para o desenvolvimento do trabalho.
Para o mês seguinte, em abril, a comunicação já era possível através da importação no
Focco de um relatório de saídas do GPF. A programação foi feita para gerar e-mails com os
itens que não alimentaram o Focco por não possuir saldo. Assim, os itens que falham devem
ser investigados os motivos pelos quais não foi possível baixar.
Foi então realizado um inventário no almoxarifado e corrigido os dois sistemas de
acordo com as quantidades do estoque físico. Para a realização do inventário foi utilizado a
planilha mestre para auxiliar na localização, conferência do item e anotação das quantidades
para alimentar os sistemas.
Após o inventário alguns itens com saldo positivo continuavam a gerar falhas na
alimentação do Focco. Verificando as causas prováveis, foi identificado que a causa era que
alguns itens foram transferidos do almoxarifado central para o gerenciamento e não foi
alterado o almoxarifado no seu cadastro. Com isso o saldo ficava em um almoxarifado e as
baixas eram realizadas em outro que estava sem saldo, gerando erro na transação. Foi então
solicitado ao setor de TI para corrigir esse problema revisando via programa todos os itens do
almoxarifado do gerenciamento.
2.4.3 Organização e identificação do local
A proposta para melhorar a organização do Gerenciamento de Ferramentas foi baseada
na metodologia 5S: senso de utilização, senso de ordenação, senso de limpeza, senso de saúde
e senso de autodisciplina.
2.4.3.1 Eliminação dos materiais sem consumo
Situação atual:


Diversos materiais sem consumo permanecem estocados;



Não tem definida uma frequência para revisão do estoque;
37


Excesso de capital em estoque.
Perdas:



Utilização desnecessária de espaço físico;



Perdas financeiras com capital parado e controle de estoque. Valor em estoque
/ consumo mensal = 3,6. O indicado é no máximo 2, baseado em boas práticas
de empresas bem conceituadas no mercado como Mahle e Eaton, que possuem
o gerenciamento de ferramentas implantado.
Proposta:



Anualmente identificar os materiais sem consumo nos últimos 18 meses;



Fazer uma análise prévia dos itens que deverão permanecer em estoque por
motivos especiais;



Enviar a lista de materiais sem consumo para a análise da engenharia de
processos da Zen Sistemas e Zen Aluminium, e para o setor de ferramentaria,
solicitando resposta em até 30 dias dos materiais que deverão continuar em
estoque;



Dispor os materiais com possibilidade de eliminar do estoque da seguinte
forma:


Materiais com possibilidade de consumir alternativamente, requisitar
para retirar do estoque, entregar no setor e inativar o item;



Materiais com tecnologia obsoleta ou não aplicável aos processos
atuais, vender como sucata ou doar para instituições como o SENAI,
por exemplo.



Materiais com tecnologia aplicável aos processos, alocar na Caixa de
obsoletos, alterar no cadastro do item o local para o novo endereço e o
status para inativo. Gerando necessidade de consumo o item será
ativado para registrar a saída e novamente inativado. Se o mesmo
voltará a ter consumo frequente, deverá ser ativado, redefinido as
quantidades de estoque e reposição, e alocado em novo local de
estoque.
38

A lista de materiais sem consumo a 18 meses realizada em maio foi de 180 itens, o que
corresponde a um valor de R$ 124.800, 00 reais. A mesma está seguindo a análise conforme
proposto acima, mas ainda não foi finalizada a atividade até o final do estágio.
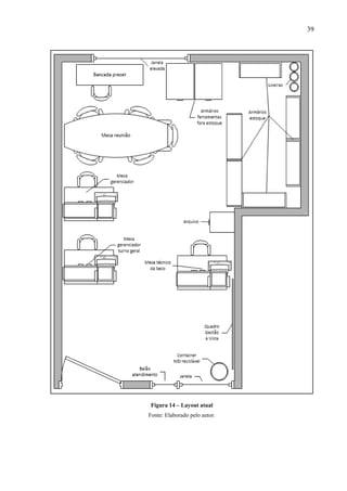
2.4.3.2 Alteração do layout
Situação atual:


Espaço mal aproveitado, impossibilitando a transferência do restante das
ferramentas do almoxarifado central para o Gerenciamento de Ferramentas;



Mesa de reunião oval maior que a necessidade;



Disposição das escrivaninhas dificulta o atendimento porque o gerenciador fica
longe do balcão;



Arquivo com as gavetas trancadas e sem condições de uso.
39

Figura 14 – Layout atual
Fonte: Elaborado pelo autor.
40

Situação proposta:


Melhor aproveitamento do espaço, possibilitando a adição de prateleiras e a
transferência do restante das ferramentas do almoxarifado central para o
Gerenciamento de Ferramentas;



Mesa de reunião redonda para apenas 4 cadeiras;



Disposição das escrivaninhas onde o gerenciador fica próximo do balcão;



Arquivo em boas condições e com espaço para armazenamento dos catálogos
dos fornecedores.
41

Figura 15 – Layout proposto
Fonte: Elaborado pelo autor.
42

O novo layout implementado foi bem aceito pela equipe, que comprovou os benefícios
que foram previstos. Não teve investimento porque a mesa e o arquivo novos estavam sem
uso em outro local da empresa.
2.4.3.3 Identificação das ferramentas
Situação atual:


Materiais diferentes armazenados no mesmo box;



Identificação dos códigos do produto e quantidades de estoque em vários
modelos de etiqueta e marcação à caneta;



Excesso de materiais sobre as mesas e armários, como peças e ferramentas;



Excesso de materiais usados aguardando seleção e destinação.

Figura 16 – Situação atual dos materiais
Fonte: Elaborado pelo autor.

Perdas:


Mistura de materiais, podendo causar furos de estoque, entrega errada de item
à produção e consequentemente geração de sucata e parada de máquina;



Aspecto visual ruim;



Dificuldade de localização e gestão visual dos materiais;



Desperdício de espaço e dinheiro.
Situação proposta:



Armazenar produtos diferentes em box distintos, ou seja, endereços distintos;



Selecionar os materiais usados destinando-os para reaproveitamento,
recondicionamento, venda para reciclagem ou sucata;
43


Ao retornar da produção, selecionar imediatamente e depositar as ferramentas
usadas nos locais específicos definidos:


Materiais seminovos nas gavetas de retorno de kanban correspondentes
à célula, localizadas nas gavetas 3 a 5 do armário B;



Materiais para reaproveitamento nas gavetas 6 e 7 do armário B;



Ferramentas para recondicionamento na gaveta 10 do armário B;



Ferramentas para reciclagem na Seco (apenas metal duro) no coletor
sob a bancada de preset e posteriormente no container de reciclagem;



Ferramentas de aço para descarte no coletor sob a bancada de preset;



Ferramentas de cerâmica, Cermet, CBN, PCD e HSS no coletor sob a
bancada de preset;



Ferramentas para teste, suportes e acessórios em condições de uso, no
armário C.



As peças e ferramentas em análise que devem ficar sobre a escrivaninha,
coloca-las sobre o material plástico de tamanho A4, conforme cartilha 5S Zen;



Identificar os produtos do estoque com o modelo de etiqueta da figura 14, que
contempla todas as informações necessárias em apenas uma etiqueta.

Código GPF
Código plano
montagem
Código Focco

Estoque mínimo

50
IN-2041.0
9911636

180
360

9911636

Estoque máximo

Código de barras

Figura 17 – Modelo de etiqueta para itens de estoque
Fonte: Elaborado pelo autor.

2.4.4 Redução de custos baseado na análise do consumo das células
O Gerenciamento de Ferramentas prioriza a atuação nas células que possuem maior
consumo de ferramentas ou maior custo de ferramentas por peça produzida. Baseado nesses
critérios foi estudado o processo de laminação de rosca e proposto alternativa para redução do
44

consumo. Outra forma de melhorar os processos através das ferramentas é reduzindo o tempo
de ciclo para melhorar a produtividade.
A seguir são apresentados os dois casos.
2.4.4.1 Melhorar aproveitamento dos machos laminadores
Esta proposta se baseia no estudo de um controle mais eficiente da vida útil dos
machos laminadores de rosca. O produto que é laminado a rosca interna é o eixo da polia, na
célula 35 da usinagem.

Figura 18 – Peça e macho laminador
Fonte: Elaborado pelo autor.

A laminação de rosca interna é um processo de conformação do aço, onde a
ferramenta denominada macho laminador é inserida com rotação no sentido da rosca,
entrando no furo da peça. O furo possui diâmetro menor, fazendo com que o filete da
ferramenta entre no material e o material escoe sobre a ferramenta no vão da mesma,
formando a rosca da peça.

Figura 19 – Secção transversal mostrando o filete de rosca laminada
Fonte: Elaborado pelo autor.
45

Os machos laminadores representam 65% do custo com ferramentas da célula.
Situação atual:


A máquina sinaliza ao operador quando a vida útil da ferramenta por peça
produzida chega ao limite e também gera alarme quando o esforço da
laminação excede o limite de torque especificado na receita;



A vida útil é a mesma para todas as peças, independentemente do comprimento
da rosca;



As receitas carregam o valor de torque máximo, sendo que o torque muda
somente por tipo de rosca (M14=30N*m; M16=35N*m e M17=38N*m), não
levando em consideração que o comprimento da rosca pode alterar o torque
necessário para a operação de laminação;



As receitas (programas) são escalonados de 3 em 3 milímetros de comprimento
de rosca. Esse escalonamento tem dois objetivos: deslocar a ferramenta
somente o necessário para otimizar o tempo de ciclo, e garantir a correta
formação da rosca em toda sua extensão.



Não havia sido realizado nenhum estudo até o início do estágio.
Perdas:



Como os controles atuais não diferenciam as peças com comprimento de rosca
diferentes, ferramentas boas podem ser descartadas e ferramentas já
desgastadas podem permanecer em operação e produzir peças de má qualidade;

Figura 20 – Ferramenta trocada em condições de uso (à esquerda) e desgastada (à direita)
Fonte: Elaborado pelo autor.
46

Estudo realizado:
Para que fosse possível ter dados reais do torque de laminação, foram produzidas
várias peças para obter diversas combinações das três variáveis principais da peça: tipo,
comprimento e sobremetal da rosca. Essas peças foram laminadas com ferramenta nova e
ferramenta com desgaste.

22 41,8

Ferramenta desgastada
Sobremetal na máxima
Tipo
M14 M16 M17
10 22,1 23,3 27,1
13
16
19

Comprimento
(mm)

Comprimento
(mm)

Ferramenta desgastada
Sobremetal na mínima
Tipo
M14 M16 M17
10 26,5 26,4 33,5
13
16
19

44,2 47,2
22 36,3
Valores de torque em N*m

37,1

41,0

Quadro 3 – Torque com ferramenta desgastada e variação do sobremetal
Fonte: Elaborado pelo autor.

Pela análise do quadro 3, a ferramenta desgastada o torque aumenta em média 5,4
N*m entre sobremetal na mínima e na máxima. O torque aumenta em média 3,9 N*m a cada
3 mm (1,3 N*m/mm).

22 32,8

Ferramenta nova
Sobremetal na máxima
Tipo
M14 M16 M17
10 18,0 23,3 26,3
13
16
19

Comprimento
(mm)

Comprimento
(mm)

Ferramenta nova
Sobremetal na mínima
Tipo
M14 M16 M17
10 23,1 30,0 34,2
13
16
19

42,4 44,3
22 27,0
Valores de torque em N*m

34,3

35,3

Quadro 4 – Torque com ferramenta nova e variação do sobremetal
Fonte: Elaborado pelo autor.

Pela análise do quadro 4, a ferramenta nova o torque aumenta em média 7,1 N*m
entre sobremetal na mínima e na máxima. O torque aumenta em média 2,5 N*m a cada 3 mm
(0,8 N*m/mm).
47

Pôde ser observado com o estudo que, em todos os tipos de rosca, o limite único de
torque foi ultrapassado nos comprimentos maiores. Isso significa que nestas peças a
ferramenta seria retirada de uso ainda em boas condições, representando perda financeira.
O experimento mostrou que a variação do sobremetal entre a medida mínima e
máxima tem influência significativa no torque, sendo 5,4 N*m a variação na ferramenta
desgastada e 7,1 N*m na ferramenta nova. Como o torque entre início e fim de vida da
ferramenta aumenta em média 3 N*m, isso indica que se o torque for definido para
sobremetal na mediana e laminar uma peça na mínima, a máquina poderá exceder o limite de
torque e levar o operador a efetuar a troca da ferramenta antes dela apresentar desgaste ideal.
Comparando os dois quadros, constatou-se que o torque entre início e fim de vida do
macho laminador aumenta em média 3 N*m. Considerando essa variação entre início e fim de
vida da ferramenta e que a cada milímetro de comprimento de rosca o torque varia 3,9 N*m a
cada 3 mm, então o uso de programas de 3 em 3 milímetros da situação atual não é adequada,
mesmo que com variação do torque entre os programas.
Baseado nesta constatação foi realizado novos testes com mais combinações de
comprimento de rosca, utilizando peças com sobremetal mediano, com o objetivo de definir
uma equação que representasse a variação do torque em relação ao comprimento de rosca.

Comprimento
(mm)

Ferramenta desgastada
Sobremetal mediano
Tipo
M14 M16 M17
10 23,5 24,8 28,9
13 28,6 30,8 33,9
16 32,5 34,8 37,8
19 36,4 39,1 42,3
22 38,3

42,5

43,3

Quadro 5 – Torque com ferramenta desgastada e sobremetal mediano
Fonte: Elaborado pelo autor.

Novamente foi constatado que nas peças acima de 16 milímetros de comprimento de
rosca, o limite de torque foi ultrapassado. 34% das peças implantadas ou 28% das peças que
produziram no último ano, possuem comprimento acima desse valor.
Foi elaborado um gráfico e adicionado a linha de tendência que melhor representa a
curva gerada pelos dados coletados em cada tipo de rosca.
48

Gráfico 3 – Variação do torque pelo comprimento da rosca
Fonte: Elaborado pelo autor.

Utilizando o conhecimento obtido nas aulas de cálculo numérico, os dados acima
foram submetidos a vários ajustes de curvas, procurando identificar qual das equações
representava melhor os pontos gerados pelos dados. A equação mais adequada foi a potencial,
representadas a seguir.
A variação do torque na rosca M14, com 99,02% de certeza, é representada pela
equação:
(

)

(

)

A variação do torque na rosca M16, com 99,44% de certeza, é representada pela
equação:
(

)

(

)

A variação do torque na rosca M17, com 98,45% de certeza, é representada pela
equação:
(

)

(

)

Estas fórmulas devem ser utilizadas para calcular o torque adequado para cada peça.
49

Situação proposta:


Eliminar o limite de vida útil por peça produzida, visto que a quantidade de
peças necessárias para desgastar a ferramenta varia muito em função do
comprimento da rosca;



Criar receitas (programas) específicas para cada peça, utilizando as funções
definidas no estudo para determinar o limite de torque;



Verificar a possibilidade de diminuir a tolerância do sobremetal, visto que
influencia diretamente no torque de laminação;



Estudar a viabilidade de controle da vida da ferramenta pela quantidade de
metros de rosca laminada.

Inicialmente foi alterado o limite de torque mantendo o escalonamento das receitas a
cada 3 mm de comprimento de rosca. Os resultados obtidos até a data da realização deste
relatório foram positivos, sendo que uma ferramenta produziu 5687 peças e a outra 5453
peças, mantendo a qualidade do produto.
Como a duração da ferramenta é longa, não foi possível obter muitos dados, mas
considerando que na situação anterior a ferramenta não ultrapassaria 4000 peças, o ganho até
o momento foi de 39%. Esse percentual aplicado ao consumo do último ano geraria um
retorno de R$ 33.000,00 reais.
Foi iniciado o estudo de controle de vida útil por metro de rosca laminada. Uma
ferramenta fez 7,73 metros de rosca e a outra fez 7,07 metros. Se constatado estabilidade
neste método de controle numa amostragem maior, o mesmo poderá ser utilizado como
controle principal e manter o monitoramento do torque para evitar dano à máquina gerado por
uma possível avaria da ferramenta. Neste caso necessitará alterar o software da máquina, pois
atualmente não possui esse recurso. O custo da alteração foi orçado em R$ 3.600, 00, valor
que pelos ganhos obtidos até o momento é amortizado em 1,5 meses.
2.4.4.2 Ferramenta conjugada
A polia de roda livre é um produto com boas perspectivas de mercado, e a empresa
vem investindo e melhorando continuamente o produto e os processos. Um dos seus
componentes, a polia arraste, é uma peça em que a quantidade de etapas e o tempo de
processamento são relevantes na formação do custo.
50

Após as etapas de usinagem do aço cru, as peças passam pelo processo de tratamento
térmico para obter as propriedades mecânicas necessárias e em seguida são encaminhadas
para uma última etapa de usinagem. Essa etapa de usinagem proporciona o acabamento
superficial e o dimensional adequados à montagem de dois rolamentos internos, um em cada
lado da peça.

Figura 21 – Polia arraste
Fonte: Elaborado pelo autor.

Situação atual:
Devido ao perfil da peça e das tolerâncias de forma da mesma, o processo de usinagem
é realizado por duas ferramentas, cada uma acabando um alojamento de rolamento. As
ferramentas são posicionadas uma de cada vez pelo tombo da torre, aproximadas da peça em
avanço rápido e realizam a usinagem em avanço de usinagem.

Figura 22 – Interior da máquina
Fonte: Elaborado pelo autor.
51

Os tempos da operação estão demonstrados no quadro 6.
Tempo
máq.
30,40

Tempo
Tempo
Homem
5,10

35,50

Fadiga
10,98%

Tempo c/
Nec.
fadiga
Pessoais
36,06

3,00%

Tempo
padrão

Qtd. Pç/h
100%

Eficiência

Qtd. Pç/h c/
eficiência

37,14

97

86,75%

84

Quadro 6 – Tempos da operação atual
Fonte: Elaborado pelo autor.

Situação proposta:
Em busca de redução do tempo de usinagem, foi proposta a utilização de uma
ferramenta conjugada, na qual as duas ferramentas ficam na mesma posição da torre. Desse
modo pode-se diminuir do ciclo o tombo da torre e minimizar o tempo de aproximação, sem
que a qualidade da peça seja afetada, pois os parâmetros no momento da remoção do material
permanecem inalterados.
Criando um programa teste, foi possível simular a nova condição, onde foi constatado
um ganho de 2,1 segundos por ciclo. O quadro 7 mostra os tempos e produção horária da
situação proposta.
Tempo
máq.
28,30

Tempo
Tempo
Homem
5,10

33,40

Fadiga
10,98%

Tempo c/
Nec.
fadiga
Pessoais
33,96

3,00%

Tempo
padrão

Qtd. Pç/h
100%

Eficiência

Qtd. Pç/h c/
eficiência

34,98

103

86,75%

89

Quadro 7 – Tempos da operação proposta
Fonte: Elaborado pelo autor.

Comparando os dois quadros é possível determinar que em um mês trabalhando com
duas máquinas é possível produzir 4620 peças a mais. Analisando de outra maneira pode-se
dizer que a melhoria aumenta em 23,3 horas a capacidade produtiva, considerando a produção
de 40 mil peças mensais.
No apêndice A é utilizada a PAI para demonstrar o cálculo transformando o tempo em
valor monetário, através da multiplicação pelo valor hora da máquina. O ganho anual
estimado é de R$ 6.998,00 reais. Considerando um investimento de 2 mil reais com a nova
ferramenta, a amortização do investimento ocorre em 3 meses e 13 dias.
3

CONCLUSÃO
Em conformidade com os objetivos acadêmicos do estagiário, o estágio proporcionou

uma boa oportunidade de aplicar o conhecimento obtido na universidade com o propósito de
gerar aprendizado prático no mercado de trabalho e crescimento profissional.
Em relação aos resultados esperados pela empresa com a atuação do estagiário, o
presente relatório demonstrou as atividades realizadas, as quais contemplaram ações de
melhoria do local de trabalho, com resultados positivos às pessoas que trabalham nele e na
eficiência das suas atividades. Foram apresentadas também propostas com ganhos financeiros
através de melhorias do processo produtivo e no estoque de ferramentas, atendendo assim os
objetivos do estágio.
REFERÊNCIAS
CHIAVERINI, V. Tecnologia mecânica – materiais de construção mecânica. 2 ed. São
Paulo: Editora McGraw-Hill. v. 3, p.146-168., 1986.
MARTINS, Eliane Ferreira. Apostila Gestão de Estoques. Disponível em:
<http://www.administracao.ufcg.edu.br/adm_rec_mat_pat/Apostila%20Gestao%20de%20Est
oques%202009.2.pdf>.
TURINO, Carlos Eduardo; POSSAMAI, Osmar. Modelo para Redução e Gerenciamento
de Estoques de Ferramentas de Corte em Empresas com Alto Volume de Usinagem –
Caso TUPY FUNDIÇÕES LTDA. Artigo apresentado no XXII Encontro Nacional de
Engenharia de Produção. Curitiba – PR, 23 a 25 de outubro de 2002. 8p, il.
APÊNDICES
55
APÊNDICE A – FORMULÁRIO PAI – PROPOSTA DE ALTERAÇÃO DE
INSERTOS

PAI - PROPOSTA DE ALTERAÇÃO DE INSERTOS

Nº 0000/13

LEVANTAMENTO DE INFORMAÇÕES DO TESTE
Peça:
Polias Arraste (RL)
Célula ou Centro de Custo:
53; 116
Descrição, Nº Máquina e Nº Patrimônio:
Mori Seiki CL200A, 116-06, 7911
Operação:
Usinagem Após Tratamento Térmico
Número da Ferramenta:
1e3
Data do Cálculo:
09/06/2013
Produção Mensal (Previsão PCP):
40.000
Custo da Hora Máquina (Financeiro):
R$ 24,30
Custo por Peça (Até esta Operação):
R$ 4,00
COMPARATIVO:
ATUAL
Fabricante do Suporte:
Fornecedor 1
A25S-CTUNL11 / A01T-350-32.0-25L
Suporte:
Preço:
R$ 1.155,80
Fabricante do Inserto:
Fornecedor 1
Inserto:
TNGN110304SCNN050C
Quebra Cavaco:
Classe:
CBN050C
Preço:
R$ 291,00
Número de Arestas:
6
Vida Útil (peças por aresta):
1200
Sucatas Geradas a Cada Troca de Aresta: 1
Tempo de Troca (minutos):
2,00
Tempo Total Ciclo (segundos):
37,14
Sucata Mensal Gerada Trocas de Aresta: 33
Custo Mensal com Sucata:
R$ 133,33
Custo Anual com Sucata:
R$ 1.600,00
Ganho Mensal com Sucata:
Ganho Anual com Sucata:
Redução dos Gastos com Sucatas em:
Consumo Mensal de Inserto:
5,56
Custo Mensal com Inserto:
R$ 1.616,67
Custo Anual com Inserto:
R$ 19.400,00
Ganho Mensal com Inserto:
Ganho Anual com Inserto:
Redução dos Gastos com Inserto em:
Tempo Mensal Troca de Aresta (minutos): 66,67
Custo Mensal com Troca de Aresta:
R$ 27,00
Custo Anual com Troca de Aresta:
R$ 324,00
Ganho Mensal com Tempo de Troca de Aresta:
Ganho Anual com Tempo de Troca de Aresta:
Redução dos Gastos com Tempo de Troca de Aresta em:
Redução do Tempo de Ciclo (seg.):
Ganho Mensal com Tempo de Ciclo:
Ganho Anual com Tempo de Ciclo:
Investimento Inicial
(Suportes, Insertos, Acessórios, etc.):
Tempo de Amortização (meses):

PROPOSTO
Fornecedor 2
Especial Conjugado
R$ 2.000,00
Fornecedor 2
TNGN110304SCNN050C
CBN050C
R$ 291,00
6
1200
1
2,00
34,98
33
R$ 133,33
R$ 1.600,00
R$ 0,00
R$ 0,00
0,00%
5,56
R$ 1.616,67
R$ 19.400,00
R$ 0,00
R$ 0,00
0,00%
66,67
R$ 27,00
R$ 324,00
R$ 0,00
R$ 0,00
0,00%
-2,16
R$ 583,20
R$ 6.998,40
R$ 2.000,00
3,43

Ganho Total Mensal:

R$ 583,20

Ganho Total Anual:

R$ 6.998,40
56

IMPLEMENTAÇÃO DA ALTERAÇÃO
ALTERAR PROGRAMAS
ALTERAR FOLHA DE OPERAÇÃO
ALTERAR PLANO DE MONTAGEM
ALTERAR FMEA
ALTERAR PLANO DE CONTROLE
ALTERAR CUSTOS (FINANCEIRO)

ALTERAR CADASTRO NO BDZ
ALTERAR CADASTRO NO FOCCO
ALTERAR TABELA DE INSERTOS TC-23.000

ALTERAR TABELA DE INSERTOS TC-22.000

ALTERAR TABELA DE ACESSÓRIOS TC-67.000

DISPOSIÇÃO DA FERRAMENTA PROPOSTA
CADASTRAR NO ESTOQUE (FORGQ123)

REDIMENSIONAR PARA QUANTIDADE ABAIXO

QTDE. EM ESTOQUE NA ZEN:

1 Peças

QTDE. EM ESTOQUE NO FORNCEDOR:

0 Peças

DISPOSIÇÃO DA FERRAMENTA ANTERIOR
REDIMENSIONAR PARA QUANTIDADE ABAIXO

DEVOLVER

SUCATAR

QTDE. EM ESTOQUE NA ZEN:

2 Peças

QTDE. EM ESTOQUE NO FORNCEDOR:

CONSUMIR E INATIVAR

0 Peças

OBS.: MATERIAL QUE NÃO TERÁ MAIS CONSUMO NÃO PODERÁ PERMANECER EM ESTOQUE

COMENTÁRIOS:

CARGO
GERENCIADOR
SUPERVISOR PRODUÇÃO
SUPERVISOR PROCESSO
CONTROLADORIA

APROVAÇÃO
NOME

VISTO / DATA

Estágio César Mohr 24/07/13

  • 1.
    UNIVERSIDADE REGIONAL DEBLUMENAU CENTRO DE CIÊNCIAS TECNOLÓGICAS DEPARTAMENTO DE ENGENHARIA DE PRODUÇÃO E DESIGN CURSO DE ENGENHARIA DE PRODUÇÃO ESTÁGIO SUPERVISIONADO EM ENGENHARIA DE PRODUÇÃO: MELHORIAS NO GERENCI AMENTO DE FERRAMENTA S DA ZEN S.A. CÉSAR MOHR BLUMENAU 2013
  • 2.
    CÉSAR MOHR ESTÁGIO SUPERVISIONADOEM ENGENHARIA DE PRODUÇÃO: MELHORIAS NO GERENCIAMENTO DE FERRAMENTAS DA ZEN S.A. Relatório de estágio curricular apresentado à disciplina Estágio Supervisionado do curso de Engenharia de Produção da Universidade Regional de Blumenau, como requisito parcial à conclusão do curso de Engenharia de Produção. Profa. Carina Henkels – Orientadora BLUMENAU 2013
  • 3.
    ESTÁGIO SUPERVISIONADO EMENGENHARIA DE PRODUÇÃO: MELHORIAS NO GERENCIAMENTO DE FERRAMENTAS DA ZEN S.A. por CÉSAR MOHR Relatório de estágio curricular obrigatório realizado na ZEN S.A., no período de 25/03/13 a 01/07/13, cumprindo requisito parcial para conclusão do curso de Engenharia de Produção da Universidade Regional de Blumenau – FURB, aprovado pela empresa concedente de estágio, representada por: Célio Brick, supervisor de estágio, e pela Banca Examinadora formada pelos professores: Profa. Carina Henkels – orientadora, FURB Prof. André Bastos – avaliador, FURB. Prof. Stephen Carpenter – avaliador, FURB.
  • 6.
    AGRADECIMENTOS Agradeço a meuspais Círio Mohr e Dilva Mohr por terem me apoiado e incentivado a buscar aprender sempre mais, a estudar com prazer. Minha gratidão aos professores, em especial a professora Carina Henkels, que me orientou neste trabalho. Ao supervisor de estágio Célio Brick e aos demais profissionais da ZEN S.A., meu sincero agradecimento pela oportunidade de estagiar e pelo apoio prestado. À minha esposa Camila, que soube compreender, incentivar, comemorar... Por tudo, muito obrigado!
  • 7.
    LISTA DE FIGURAS Figura1 – Empresa Zen S.A. ................................................................................................................. 11 Figura 2 – Organograma Hierárquico .................................................................................................... 14 Figura 3 – Divisões de mercado ............................................................................................................. 15 Figura 4 – Impulsores de partida ............................................................................................................ 16 Figura 5 – Polias com roda-livre para alternadores ................................................................................ 17 Figura 6 – Tensionadores ....................................................................................................................... 17 Figura 7 – Mancais do alternador ........................................................................................................... 18 Figura 8 – Fluxograma processo produtivo ............................................................................................ 20 Figura 9 – Suporte de usinagem ............................................................................................................. 25 Figura 10 – Inserto de usinagem ............................................................................................................ 25 Figura 11 – Ferramentas inteiriças ......................................................................................................... 26 Figura 12 – Fluxograma das ferramentas do gerenciamento.................................................................. 27 Figura 13 – Localização das ferramentas no software ........................................................................... 31 Figura 14 – Layout atual ........................................................................................................................ 39 Figura 15 – Layout proposto .................................................................................................................. 41 Figura 16 – Situação atual dos materiais ................................................................................................ 42 Figura 17 – Modelo de etiqueta para itens de estoque ........................................................................... 43 Figura 18 – Peça e macho laminador ..................................................................................................... 44 Figura 19 – Secção transversal mostrando o filete de rosca laminada ................................................... 44 Figura 20 – Ferramenta trocada em condições de uso (à esquerda) e desgastada (à direita) ................. 45 Figura 21 – Polia arraste......................................................................................................................... 50 Figura 22 – Interior da máquina ............................................................................................................. 50 Gráfico 1 – Consumo de ferramentas no Focco ..................................................................................... 35 Gráfico 2 – Consumo de ferramentas no GPF ....................................................................................... 35 Gráfico 3 – Variação do torque pelo comprimento da rosca .................................................................. 48
  • 8.
    LISTA DE QUADROS Quadro1 – Histórico da Empresa Zen S.A. de 1960-2013. ................................................................... 12 Quadro 2 – Check list para homologação de ferramentas ...................................................................... 30 Quadro 3 – Torque com ferramenta desgastada e variação do sobremetal ............................................ 46 Quadro 4 – Torque com ferramenta nova e variação do sobremetal ...................................................... 46 Quadro 5 – Torque com ferramenta desgastada e sobremetal mediano ................................................. 47 Quadro 6 – Tempos da operação atual ................................................................................................... 51 Quadro 7 – Tempos da operação proposta ............................................................................................. 51
  • 9.
    SUMÁRIO 1 INTRODUÇÃO ..................................................................................................................10 1.1 APRESENTAÇÃO DA EMPRESA .................................................................................. 10 1.1.1 Visão, Missão e Valores ............................................................................................... 13 1.1.2 Organograma Hierárquico ............................................................................................ 13 1.1.3 Mercados ....................................................................................................................... 15 1.1.4 Qualidade ...................................................................................................................... 15 1.1.5 Produtos ........................................................................................................................ 15 1.2 OBJETIVOS ...................................................................................................................... 18 1.2.1 Objetivo Geral .............................................................................................................. 18 1.2.2 Objetivos Específicos ................................................................................................... 18 2 ATIVIDADES DESENVOLVIDAS ................................................................................. 19 2.1 FLUXOGRAMA DO PROCESSO PRODUTIVO ........................................................... 19 2.1.1 Posição do Gerenciamento de Ferramentas dentro do processo produtivo .................. 21 2.2 PRINCIPAIS SETORES PRODUTIVOS DA EMPRESA ............................................... 21 2.2.1 Setor de conformação ................................................................................................... 22 2.2.2 Setor de usinagem ......................................................................................................... 22 2.2.3 Setor de tratamento térmico .......................................................................................... 23 2.2.4 Setor de montagem ....................................................................................................... 24 2.3 LAYOUT E DESCRIÇÃO DO LOCAL DE ESTÁGIO: O GERENCIAMENTO DE FERRAMENTAS DE USINAGEM ......................................................................................... 24 2.3.1 Apresentação dos tipos de ferramentas estocadas ........................................................ 25 2.3.2 Fluxograma das ferramentas do gerenciamento ........................................................... 26 2.4 OPORTUNIDADES DE MELHORIAS ........................................................................... 28 2.4.1 Homologação de ferramentas ....................................................................................... 28 2.4.2 Cadastros das ferramentas ............................................................................................ 31 2.4.2.1 Dificuldade na localização dos materiais...................................................................... 31 2.4.2.2 Impossibilidade de gerar ordem de compra automática das ferramentas ..................... 32 2.4.2.3 Falta de ferramentas pelo estoque mal dimensionado .................................................. 33 2.4.2.4 Erros nas baixas GPF para Focco ................................................................................. 34 2.4.3 Organização e identificação do local ............................................................................ 36
  • 10.
    2.4.3.1 Eliminação dosmateriais sem consumo ....................................................................... 36 2.4.3.2 Alteração do layout ....................................................................................................... 38 2.4.3.3 Identificação das ferramentas ....................................................................................... 42 2.4.4 Redução de custos baseado na análise do consumo das células ................................... 43 2.4.4.1 Melhorar aproveitamento dos machos laminadores ..................................................... 44 2.4.4.2 Ferramenta conjugada ................................................................................................... 49 3 CONCLUSÃO .................................................................................................................... 52 REFERÊNCIAS ..................................................................................................................... 53 APÊNDICES ........................................................................................................................... 54 APÊNDICE A – FORMULÁRIO PAI – PROPOSTA DE ALTERAÇÃO DE INSERTOS .............................................................................................................................. 55
  • 11.
    1 INTRODUÇÃO O estágio ocorreuna empresa Zen S.A., especializada em impulsores de partida da área automotiva. A Zen S.A. está em processo de implantação do Gerenciamento de Ferramentas de usinagem em parceria com empresa terceirizada. A empresa contratada entra com o apoio técnico e consultoria e a Zen com a mão de obra e estrutura. Este projeto objetiva redução de custos dos processos através da melhoria dos processos, do aumento da produtividade e da redução do consumo de ferramentas. Em segundo estágio, a Zen espera pagar ao Gerenciamento por peça produzida, e a responsabilidade dos custos de produção com ferramental é do contratado. O estágio foi realizado no Gerenciamento de Ferramentas, onde foram aplicados conhecimentos e ferramentas aprendidas ao longo do curso e no ambiente de trabalho assim como no decorrer do estágio. Este trabalho apresenta as atividades de organização do sistema e do estoque físico do ferramental, bem como de duas propostas de melhorias no processo produtivo. 1.1 APRESENTAÇÃO DA EMPRESA Com uma área construída de mais de trinta e três mil metros quadrados cerca de mil funcionários, a Zen S.A. destaca-se como uma das mais importantes indústrias do ramo de autopeças do país.
  • 12.
    11 Figura 1 –Empresa Zen S.A. Fonte: Empresa Zen S.A. (2013). Presença mundial com exportação para países de todos os continentes e milhões de peças produzidas a cada ano seguindo os mais rigorosos padrões de qualidade, a ZEN vem construindo uma história de sucesso. São 53 anos de uma trajetória repleta de vitórias e de desafios superados. Fundada em 1960 pelos irmãos Nelson e Hylário Zen, nascidos em Brusque (SC), a empresa sempre pautou sua atuação baseada em valores sólidos, que permeiam a cultura da organização. 1960 - Fundada pelos irmãos Hylário e Nelson Zen, uma pequena fábrica de peças para rádio, ocupava um galpão de 30 m2 em São Paulo. 1963 - Início da produção de Impulsores de Partida. 1973 - Transferência da Zen S.A. para a cidade de Brusque, terra natal de seus fundadores. Situada no Vale do Itajaí, em Santa Catarina, a cidade é altamente industrializada e um importante polo têxtil do país. 1975 - Início da aplicação de tecnologia de conformação maciça a frio para a confecção dos principais componentes dos impulsores. 1976 - Primeira exportação direta dos produtos da Zen. 1984 - Implantação de fornos de atmosfera controlada para tratamento térmico. 1985 - Fundação de Centro de Treinamento Técnico Operacional Zen (CTZ). 1986 - Fornecimento de peças para montadoras de veículos.
  • 13.
    12 1989 - Implantaçãoda linha de mancais, polias, ventoinhas e porta escovas aplicados em alternadores, dínamos e motores de partida. 1991 - Aquisição de vários centros de torneamento CNC. 1993 - Início da implantação do Programa de Qualidade Total Zen (QTZ). 1995 - Aquisição de vários centros de usinagem CNC e prensas automatizadas. 1996 - Obtenção do certificado ISO 9001 pelo ABS-QE. 1998 - Conquista do certificado QS 9000, e Joint-Venture entre Zen S.A. e Delco Remy International (surge a Delco Remy Brasil). 2002 - Conquista do Certificado ISO/TS 16949. 2003 - Aquisição de prensas de conformação horizontal progressiva. 2004 - A IRMÃOS ZEN S.A. passa a se chamar ZEN S.A. Indústria Metalúrgica. 2005 - Acontece a instalação da Unidade de Alumínio e Ferro Fundido (UNAFF), hoje ZEN Aluminium. 2006 - Lança a Polia do alternador com sistema de roda livre. Inicia a implantação dos conceitos Lean Manufacturing. 2008 - É lançada no mercado a planetária. 2009 - Recebe certificado que nomeia Fornecedora Preferencial BOSCH. Conquista o certificado ISO 14001, comprometida com a sustentabilidade. Recebe Premiação REMY por qualidade superior dos produtos. Certificado de uma das empresas mais inovadoras do sul do Brasil, realizado pela Revista AMANHÃ e prêmio Ser Humano SC-2009 por reconhecimento em seus projetos sociais realizado pela ABRH. 2010 - ZEN comemora 50 anos de fundação. 2011 - Fornecimento de rodas de pulso para freios ABS da GM. 2012 - Aquisição de vários robôs para automatização da alimentação das máquinas. Quadro 1 – Histórico da Empresa Zen S.A. de 1960-2013. Fonte: Empresa Zen S.A. (2013).
  • 14.
    13 1.1.1 Visão, Missãoe Valores Visão Ser instrumento para o progresso sustentável que conquiste a preferência de nossos clientes e o orgulho da nossa equipe, através da inovação, qualidade e excelência operacional. Missão Desenvolver, produzir e fornecer componentes e sistemas para veículos automotores, para os segmentos original e reposição, com geração de valor para o negócio, clientes e sociedade. Valores  Comprometimento  Sinceridade  Integridade  Senso de Urgência  Empreendedorismo 1.1.2 Organograma Hierárquico Abaixo é apresentada a estrutura administrativa principal da empresa.
  • 15.
    Fonte: Elaborado peloautor. Figura 2 – Organograma Hierárquico 14
  • 16.
    15 1.1.3 Mercados A ZENexporta para mais de 60 países. Apesar da forte atuação mundial, a empresa cresce no mercado brasileiro, aquecido nos últimos anos pelo aumento da produção de veículos. Figura 3 – Divisões de mercado Fonte: Empresa Zen S.A. (2013). 1.1.4 Qualidade A qualidade é desenvolvida com o comprometimento das pessoas e o suporte da alta tecnologia para garantir a reconhecida confiabilidade que os produtos da ZEN conquistaram mundialmente. As certificações ISO 9001 e ISO TS-16949 comprovam o atendimento aos rigorosos padrões de qualidade. Mas a ZEN evolui, extrapola os requisitos das normas e faz mais, para que a qualidade não seja apenas uma exigência do mercado, mas um diferencial. 1.1.5 Produtos A Zen S.A. atua na fabricação de Impulsores de Partida, Planetárias, Polias de Roda Livre e Rígidas, para aplicação em motores de partida e alternadores, além desses produtos possuímos a linha de Tensionadores para linha mecânica e Placas de Partida e Tensor de corrente para o mercado de moto peças. A empresa conta também com a estrutura da ZEN ALUMINIUM que fabrica mancais para alternadores e motores de partida em alumínio e ferro fundido e oferece seus serviços de injeção a terceiros.
  • 17.
    16 Impulsores de partida Figura4 – Impulsores de partida Fonte: Empresa Zen S.A. (2013). A ZEN é líder mundial na fabricação de impulsores de partida. São aproximadamente 800 modelos para as mais diversas aplicações no mercado original e de reposição. Na linha de impulsores Maxitork, aplicado em veículos pesados com alta capacidade de torque, a ZEN detém uma grande parcela de participação no mercado mundial. Nos impulsores convencionais se destaca de seus concorrentes pela qualidade. Para atender a linha náutica, a ZEN também possui Impulsores de Partida para aplicação em Jet Ski.
  • 18.
    17 Polias para alternadores Figura5 – Polias com roda-livre para alternadores Fonte: Empresa Zen S.A. (2013). A ZEN produz diversos modelos de polias, de aço e ferro fundido, rígidas e com sistema de roda livre. As polias com sistema de roda livre têm grande potencial de mercado e por este motivo a empresa vem investindo na melhoria do seu desempenho bem como na otimização dos processos de fabricação. Planetárias, Tensionadores e Atuadores de Embreagem Figura 6 – Tensionadores Fonte: Empresa Zen S.A. (2013). A ZEN utiliza um processo único e patenteado na produção da Planetária, que acarreta em maior robustez do sistema por apresentar têmpera total do eixo. A linha de tensionadores foi lançada em 2009, e em m seguida foi lançado os atuadores de embreagem, marcando a entrada no segmento mecânico. Para motocicletas a Zen produz tensores de corrente com sistema de trava anti-recuo e Placa de Partida com patente requerida. Apresenta maior robustez, partidas mais suaves e menos atrito.
  • 19.
    18 Mancais do alternadore peças em alumínio injetado Figura 7 – Mancais do alternador Fonte: Empresa Zen S.A. (2013). Os Mancais em alumínio são injetados e usinados na própria ZEN. Também produz peças em alumínio injetado para diversas aplicações. Exemplos: base do queimador de fogão, mancais de motores de partida e outras variedades de produtos. 1.2 OBJETIVOS 1.2.1 Objetivo Geral Melhorar a organização e o controle do estoque no Gerenciamento de Ferramentas e estudar alternativas técnicas para redução do consumo de ferramentas. 1.2.2 Objetivos Específicos  Propor ações para minimizar os erros de estoque.  Melhorar a identificação das ferramentas.  Indicar a solução para as principais dificuldades relacionadas às atividades informatizadas do gerenciamento.  Desenvolver mecanismo para garantir a realização das atividades de implantação de uma nova ferramenta.  Elaborar uma sistemática para retirar do estoque os itens sem consumo.  Identificar oportunidades de melhorias para redução de custos com ferramentas.
  • 20.
    2 ATIVIDADES DESENVOLVIDAS Neste capítuloserá descrito o processo produtivo da empresa e as atividades de estágio. 2.1 FLUXOGRAMA DO PROCESSO PRODUTIVO Para facilitar o entendimento geral do processo produtivo da Zen S.A. foi desenvolvido um fluxograma apresentado abaixo.
  • 21.
    20 Figura 8 –Fluxograma processo produtivo Fonte: Elaborado pelo autor.
  • 22.
    21 2.1.1 Posição doGerenciamento de Ferramentas dentro do processo produtivo Destacado em verde no fluxograma anterior, representado pela figura 8, está o Gerenciamento de Ferramentas. Trata-se de um setor de apoio onde seu principal cliente é a usinagem Zen Sistemas e Zen Aluminium e também a ferramentaria. Este foi o local do estágio e será mais bem detalhado na sequência deste relatório. 2.2 PRINCIPAIS SETORES PRODUTIVOS DA EMPRESA Os principais setores de manufatura da empresa são a conformação, a usinagem, o tratamento térmico e a montagem. Também possui outros considerados setores intermediários, que tem o papel de alimentar e suprir as necessidades do dia a dia do sistema produtivo da empresa. Os considerados setores intermediários são a ferramentaria, o laboratório de metrologia, o laboratório de metalografia, a manutenção, assim como os setores de recebimento, estoque de semiacabados, estoque de componentes, almoxarifado de ferramental, almoxarifado central e o gerenciamento de ferramentas. Este último possui as ferramentas de usinagem e é o setor onde foi realizado o estágio. O cliente faz o pedido ao setor de Vendas e este repassa a informação ao PCP para programação da produção, ao setor de Compras para aquisição de matéria prima e à Engenharia de Produto que dispõe a estrutura do produto e seus componentes. A informação da Engenharia de Produto chega à Engenharia de Processos que define as etapas e o ferramental para produzir as peças. Com os dados dos setores acima o produto entra em produção seguindo o principal fluxo que é pela Conformação, Usinagem, Tratamento Térmico, Retífica, Montagem e então disposto na Expedição para entrega ao Cliente. Os setores de apoio atuam principalmente através de ordens de serviço abertas pelos setores de produção. A manutenção é responsável pela correção e prevenção das falhas das máquinas, e Metrologia pela manutenção e controle dos instrumentos de medição, a Ferramentaria pela produção e reparo do ferramental e a Metalografia pela análise do aço dos produtos. O Recebimento, o Almoxarifado Central e o Gerenciamento de Ferramentas trabalham com os produtos comprados, sendo que no Gerenciamento de Ferramentas é estocado apenas as ferramentas de corte utilizadas na Usinagem. As ferramentas de
  • 23.
    22 conformação e demaisferramentas fabricadas são estocadas no Almoxarifado de Ferramental localizado ao lado da ferramentaria para facilitar a logística e o controle. Abaixo é explicado com mais detalhes os principais setores produtivos da empresa. 2.2.1 Setor de conformação O setor de conformação é onde ocorrem as primeiras transformações das peças. O aço que chega em rolos de fio máquina ou em barras laminadas de 6 metros maciças em várias bitolas, são cortados e conformados de acordo com as características de cada produto. Dependendo das características e dimensionamentos do produto, a conformação já consegue deixar a peça pronta, ou parte dela pronta, não necessitando de usinagem posterior. Na conformação as ordens de produção são enviadas pelo PCP, a matéria prima bruta que se encontra estocada é requisitada, cortada em blanques e conformada, seguindo várias etapas de prensagem, intercalada por operações de recozimento e fosfatização para manter a qualidade do aço e evitar trincas. As prensas são do tipo mecânicas e hidráulicas, verticais e horizontais, simples e vários estágios, e possuem diversas capacidades de carga dependendo da necessidade de aplicação. Como as prensas executam diversas operações de diversos fluxos de processo, a disposição do layout das máquinas é individual, exceto em alguns casos em que peças de maior demanda foram agrupadas e ocupou a capacidade produtiva das máquinas, onde foi instalado robôs para alimentá-las. Já as prensas horizontais multi-estágios são capazes de receber a matéria prima em forma de bobina e disponibilizar as peças semiacabadas necessitando apenas operações de usinagem indispensáveis ao produto. Ainda no setor de conformação, também são estampadas peças provenientes de chapas. Na conformação as peças são codificadas como semiacabadas e após serem conformadas são encaminhadas para um estoque intermediário, onde aguardarão para serem usinadas. 2.2.2 Setor de usinagem O setor de usinagem é responsável por dar a forma final na peça conforme especificações do produto. Nos casos onde a conformação não consegue atingir o formato
  • 24.
    23 final do produto,o material excedente após a conformação é retirado por usinagem. A maior parte das máquinas são tornos de alta tecnologia, automáticas com comando CNC e utilizam ferramentas de corte de última geração com alta performance. As ferramentas de usinagem estão alocadas no almoxarifado do gerenciamento de ferramentas e são disponibilizadas para uso pelos gerenciadores. Na usinagem as ordens de fabricação são para a produção de componentes e estes componentes estão relacionados a um semiacabado produzido na conformação e disponibilizado no estoque intermediário. As operações de usinagem podem ser de torneamento, fresamento, brochamento, retífica ou a conjugação de diversos deles. O layout principal da usinagem é celular em U, com uma entrada e uma saída e fluxo contínuo entre as operações. Deste modo obtém-se menor movimentação, menor estoque em processo e melhor aproveitamento da mão de obra. No setor de usinagem também existe a área de retífica, usada para as peças que necessitam precisão dimensional e acabamento que não são alcançadas nas operações de torneamento. A retificação é realizada nas peças temperadas, ou seja, as peças que já foram processadas no tratamento térmico. Também existem diversos casos em que as peças temperadas passam por uma nova operação de torneamento, utilizando ferramentas especialmente desenvolvidas para a remoção de material endurecido. 2.2.3 Setor de tratamento térmico As peças provenientes do setor de usinagem são encaminhadas para o setor de tratamento térmico para que a estrutura e superfície ganhem dureza e propriedades mecânicas de acordo com as especificações de cada produto. As peças temperadas passam por operações de acabamento onde são jateadas e oleadas. Os fornos são elétricos e a gás GLP e a têmpera é realizada em banho de óleo. Conforme descrito anteriormente, algumas peças retornam para operação adicional de torneamento ou retífica, as demais seguem direto para o estoque de componentes, onde aguardarão serem retirados para a montagem. O setor de tratamento térmico também é responsável pelo recozimento das peças entre as etapas de conformação a frio.
  • 25.
    24 2.2.4 Setor demontagem As peças/componentes acabados que estão armazenadas no estoque de componentes são montadas de acordo com cada projeto e destinadas para a expedição. A maior parte dos componentes são fabricados internamente, alguns terceirizados e outros comprados da indústria nacional ou importados. O setor é organizado em linhas onde são realizadas operações de montagem, medição e embalagem dos produtos. Cada linha monta vários produtos que possuem operações similares, os quais possibilitam a utilização total ou parcial do maquinário e da mão de obra da linha. Os produtos montados seguem para o setor de expedição para posterior envio ao cliente. 2.3 LAYOUT E DESCRIÇÃO DO LOCAL DE ESTÁGIO: O GERENCIAMENTO DE FERRAMENTAS DE USINAGEM O Gerenciamento de Ferramentas trata-se de um setor onde é feito todo o controle das ferramentas de corte utilizadas na usinagem. Neste local são armazenadas as ferramentas de usinagem que anteriormente estavam dispostas no Almoxarifado central. Quando as ferramentas estavam no almoxarifado central os operadores se deslocavam do posto de trabalho para buscar as ferramentas, e o controle do consumo não era de responsabilidade dos almoxarifes, ou seja, com o gerenciamento o controle das ferramentas ficou como responsabilidade das pessoas que as disponibilizam, possibilitando assim melhor controle dos custos. O gerenciamento é compartilhado, pois a mão de obra é da Zen e a consultoria, apoio técnico e sistema informatizado é da Seco Tools, um fornecedor de ferramentas que presta consultoria em gerenciamento. Neste local as ferramentas são estocadas, separadas e entregues à produção, recolhidas, avaliadas o uso e desgaste e destinadas para reaproveitamento, recondicionamento, reciclagem ou descarte. Além disso, os colaboradores deste setor são responsáveis por desenvolver atividades de controle e melhoria das ferramentas e processos, visando redução de custos e ganhos financeiros.
  • 26.
    25 Neste almoxarifado estãoalocados 766 produtos, com a quantidade de aproximadamente 10 mil ferramentas e um valor de 500 mil reais. Para gestão do estoque a Zen utiliza um software do fornecedor de ferramentas Seco Tools, denominado GPF que significa Gestão de Processos e Ferramentas. Nele são feitas as ordens de compra para reposição, os recebimentos, as saídas, as tratativas de desvio. 2.3.1 Apresentação dos tipos de ferramentas estocadas Suporte: é fixado na máquina e possibilita a troca rápida do inserto intercambiável. São diversos modelos para usinagem interna e externa. Figura 9 – Suporte de usinagem Fonte: Imagem da internet. Inserto: é fixado no suporte e é o responsável pela remoção de material da peça. Possuem diversas geometrias, classes e quebra cavacos. Figura 10 – Inserto de usinagem Fonte: Imagem da internet.
  • 27.
    26 Ferramentas inteiriças: brocas,fresas e machos de aço rápido e metal duro. Figura 11 – Ferramentas inteiriças Fonte: Imagem da internet. 2.3.2 Fluxograma das ferramentas do gerenciamento Para entender a sistemática do trabalho dos gerenciadores, foi acompanhado o dia a dia e então desenvolvido o fluxograma abaixo, que mostra o caminho seguido pela ferramenta de usinagem estocada no Gerenciamento de Ferramentas.
  • 28.
    27 Figura 12 –Fluxograma das ferramentas do gerenciamento Fonte: Elaborado pelo autor.
  • 29.
    28 Acompanhando o processoe visualizando o fluxograma foi possível identificar diversas oportunidades de melhoria e propor ações para alcançar melhores resultados. 2.4 OPORTUNIDADES DE MELHORIAS Abaixo a descrição do problema encontrado e apresentação da solução realizada ou proposta. 2.4.1 Homologação de ferramentas Situação atual: Para a implantação ou substituição de uma ferramenta é necessária a realização de testes, utilização de lote piloto, e após isso, ser homologada em uma reunião com um comitê formado pelos gerenciadores, pelo supervisor da Engenharia de Processos, por representante da controladoria e custos e por um analista de compras. Para avaliação da viabilidade de aprovação do novo item, é usada uma planilha chamada “PAI”, que significa Proposta de Alteração de Insertos, onde é comparado o item atual com o proposto, mostrando os ganhos financeiros da proposta. Nesta planilha são considerados três fatores principais: consumo de ferramentas, tempo de usinagem e quantidade de refugos relacionados às trocas de inserto. Perdas: Mesmo com todo este cuidado, algumas ferramentas homologadas não eram oficializadas nos documentos relacionados a elas ou que ao implantar na usinagem gerava diversos problemas que faziam com que o rendimento caísse inviabilizando o seu uso. As operações de usinagem possuem um documento denominado Plano de Montagem no qual estão descritas as ferramentas e demais informações para o setup da máquina. Neste plano de montagem é colocado um código SU para Suporte de usinagem e IN para Inserto de usinagem, e a descrição técnica do fornecedor da ferramenta está disponível em uma Tabela Complementar. Como a Tabela Complementar não era atualizada, a documentação do processo também ficava errada, possibilitando ocorrência de erros de regulagem de máquina com diversas consequências.
  • 30.
    29 A queda derendimento ocorria porque nos testes, algumas vezes, eram alterados os parâmetros de corte para otimização do desempenho da ferramenta, mas que no momento da homologação não era considerada a necessidade de padronização dos novos parâmetros para as demais peças e máquinas, nem planejada a disponibilidade de mão de obra para a realização desta tarefa. Com os parâmetros incorretos o desempenho da ferramenta reduzia causando aumento dos gastos e geração de sucatas. Situação proposta: Para garantir que na homologação sejam contempladas todas as variáveis relacionadas à implantação da nova ferramenta, foi proposto o uso de um check list complementar à PAI – Proposta de Alteração de Insertos, conforme quadro 2. No apêndice A pode ser visto uma PAI completa. No campo implementação da alteração são verificadas a necessidade de alteração da documentação, dos cadastros no sistema e no programa de usinagem CNC. Dessa forma, as principais causas das perdas que ocorriam na implantação da nova ferramenta são verificadas a fim de definir ações e responsáveis para realiza-las. Nos campos de disposição das ferramentas a utilização do chek list proporciona também a verificação do material que está sendo substituído, evitando que a quantidade estocada fique acima da nova necessidade ou até mesmo que o material que não será mais consumido após a mudança do processo fique parado e obsoleto no estoque, gerando perdas financeiras pelo aumento dos custos com estoques e inventário.
  • 31.
    30 IMPLEMENTAÇÃO DA ALTERAÇÃO ALTERARPROGRAMAS ALTERAR FOLHA DE OPERAÇÃO ALTERAR PLANO DE MONTAGEM ALTERAR FMEA ALTERAR PLANO DE CONTROLE ALTERAR CUSTOS (FINANCEIRO) ALTERAR CADASTRO NO BDZ ALTERAR CADASTRO NO FOCCO ALTERAR TABELA DE INSERTOS TC-23.000 ALTERAR TABELA DE INSERTOS TC-22.000 ALTERAR TABELA DE ACESSÓRIOS TC-67.000 DISPOSIÇÃO DA FERRAMENTA PROPOSTA CADASTRAR NO ESTOQUE (FORGQ123) REDIMENSIONAR PARA QUANTIDADE ABAIXO QTDE. EM ESTOQUE NA ZEN: 0 Peças QTDE. EM ESTOQUE NO FORNCEDOR: 0 Peças DISPOSIÇÃO DA FERRAMENTA ANTERIOR REDIMENSIONAR PARA QUANTIDADE ABAIXO DEVOLVER SUCATAR QTDE. EM ESTOQUE NA ZEN: 0 Peças QTDE. EM ESTOQUE NO FORNCEDOR: CONSUMIR E INATIVAR 0 Peças OBS.: MATERIAL QUE NÃO TERÁ MAIS CONSUMO NÃO PODERÁ PERMANECER EM ESTOQUE COMENTÁRIOS: CARGO APROVAÇÃO NOME VISTO / DATA GERENCIADOR SUPERVISOR PRODUÇÃO SUPERVISOR PROCESSO CONTROLADORIA Quadro 2 – Check list para homologação de ferramentas Fonte: Elaborado pelo autor.
  • 32.
    31 2.4.2 Cadastros dasferramentas As ferramentas do gerenciamento possuem cadastro no software de Gestão de Processos e Ferramentas – GPF. Nele é possível, dentre inúmeras opções, localizar o endereçamento de estocagem e realização da ordem de compra automática. No início do estágio, a equipe se deparava com diversos problemas, que geravam perda de eficiência do seu trabalho, estresse, falta de ferramentas e consequente parada de máquina, além dos gastos com fretes urgentes. Nos subtítulos a seguir serão descritos os problemas, suas causas e as ações tomadas. 2.4.2.1 Dificuldade na localização dos materiais Como a quantidade de itens é grande, para localizar o material desejado é utilizada a busca do endereço no sistema. Essa localização era dificultada pelo uso incorreto do filtro de busca. Na figura 14 é demostrado um exemplo de busca pela qual é possível verificar que existem diversos itens similares, que se a descrição não estiver num formato padronizado e selecionado o correto método de filtro, fica muito difícil e demorada a localização do material. Figura 13 – Localização das ferramentas no software Fonte: Elaborado pelo autor.
  • 33.
    32 Como era utilizadoo método de filtro de busca do tipo “começa com”, se fosse digitado já no primeiro caractere um valor errado, não era mais possível localizar o produto. Como a ferramenta não era localizada o gerenciador passava a supor que a ferramenta não estava cadastrada no sistema que era recente, passou-se a realizar um novo cadastramento. Isso gerou um efeito muito prejudicial, pois passou a dificultar mais a localização, além de gerar inúmeros furos de estoque, visto que um fazia a saída do item no código “x” e outro no código “y”. Medidas adotadas: Foram então padronizados os cadastros e passado a utilizar o método de filtro “contém”, através do qual é possível localizar o item inserindo um ou mais caracteres em sequência de qualquer parte da descrição. Uma ação extremamente simples, mas que gerou um grande benefício. Foi proposto, mas ainda não implementado, o acréscimo do código do plano de montagem e do código contábil do Focco (ERP) na descrição do item. Com isso, qualquer que seja a informação trazida pelo cliente, o gerenciador conseguirá localizar rapidamente o item desejado. 2.4.2.2 Impossibilidade de gerar ordem de compra automática das ferramentas A geração de ordens de compra automática é uma grande vantagem do sistema, pois reduz o tempo da atividade, evitando ter de verificar item a item do estoque físico para identificar a necessidade de reposição. Como não havia identificação no armazenamento físico, a atividade não era precisa, faltavam alguns itens e outros eram comprados excessivamente. A verificação era feita no estoque físico identificando os itens que estavam com estoque baixo, estipulava-se uma quantidade a comprar pelo conhecimento do colaborador e então cadastrava a compra do item no sistema. Após isso, o analista de compras enviava o pedido aos fornecedores. Como o estoque não tinha informação das quantidades mínima e quantidade a repor, itens com baixo consumo e sem necessidade de reposição eram inchados com a compra de mais peças e itens com consumo alto falavam ferramentas pela compra abaixo do necessário. A demora na realização da atividade se dava pela forma manual que era realizada.
  • 34.
    33 Através da ordemde compra automática o gerenciador executa uma rotina do software GPF que calcula a quantidade de material que necessita ser comprada para que o estoque seja reposto nas quantidades predefinidas. Essa rotina é executada semanalmente e gera um relatório contendo o código, a descrição, o fornecedor e as quantidades de cada ferramenta, e este relatório é enviado ao analista de compras que gera o pedido e envia aos fornecedores. Porém, as ordens de compras automáticas não funcionavam devido à ocorrência mensagens de erro no sistema. Consultando a equipe foi possível identificar que existiam erros no cadastramento das ferramentas que eram a causa dos problemas, pois impediam o correto funcionamento do sistema. Havia falta ou erro de: descrição, tipo, dimensionamento do estoque, código de integralização com o Focco (ERP), tempo de reposição, unidade de medida, endereço, preço, fornecedor e centro de custo de alocação. Medidas adotadas: O estagiário elaborou uma planilha mestre que serviu de base para a revisão do sistema de gerenciamento e do estoque físico. Essa planilha continha um relatório exportado para Excel de todos os cadastros do software GPF. Trabalhando os dados e encontrando as duplicações de endereço e de código contábil, foi possível identificar e resolver as duplicações e os erros de cadastros, pois em sequência os itens eram revisados e marcados o status como revisado. Após a conclusão da revisão havia sido inativado 134 itens que estavam duplicados. Trata-se de uma quantidade extremamente alta, 17,5% dos itens eram duplicados. Foi solicitado à Seco Tools para que providencie a exclusão desses cadastros que, apesar de inativos, continuam poluindo o banco de dados, e os usuários da Zen não têm permissão para excluir. 2.4.2.3 Falta de ferramentas pelo estoque mal dimensionado Para o correto funcionamento das compras automáticas, o estoque deve estar acurado e os pontos de reposição corretamente dimensionados. O ponto de reposição é a quantidade de ferramentas em que passa a ser necessário comprar mais material para evitar a falta. A quantidade a repor é o tamanho do lote de ferramentas que deve ser comprado de cada vez. Com as ordens de compra automáticas, surgiu um novo problema com consequências semelhantes aos da compra manual: a falta de material pelo mau dimensionamento dos pontos
  • 35.
    34 de reposição doestoque. Até aquele momento os gerenciadores não se atentavam aos pontos de reposição que existia no sistema porque não eram utilizados. Medidas adotadas: Para corrigir o sistema, foi gerado um relatório de consumo dos últimos 6 meses. Para os itens Standards, o ponto de reposição reserva estoque para 3 semanas do consumo médio dos últimos 6 meses. Para os itens especiais com prazo de entrega de 30 dias o ponto de reposição reserva estoque para 6 semanas. Demais exceções foram definidas caso a caso. Essa metodologia foi sugerida pela Seco Tools pela experiência de gerenciamento em outras grandes empresas como Eaton e Mahle, do interior de São Paulo. Os valores também foram inseridos na planilha mestre para a geração de etiquetas para gestão visual do estoque físico. Os itens que não tiveram consumo nos meses contemplados no relatório ficaram para uma segunda etapa de revisão, com prazo para final de junho. Foi sugerido à equipe para no futuro aplicar o modelo de lote econômico, que leva em consideração o custo de obtenção e o custo de armazenagem. Na evolução do gerenciamento que é algo novo na empresa, o dimensionamento será revisado com frequência maior, levando em consideração as demandas produtivas, visto que os processos estão sendo mapeados e será possível saber quantas ferramentas serão necessárias para produzir cada produto da usinagem. No momento o trabalho está ainda na base, com diversos problemas básicos de ordem prática, onde se julgou mais conveniente trabalhar em melhorias de processo onde os ganhos são mais relevantes. O software GPF também permite executar as compras de ferramentas de baseada na demanda dos produtos que estão programados para produzir na usinagem. Isso será possível após o cadastramento das ferramentas e da sua vida útil para cada peça. 2.4.2.4 Erros nas baixas GPF para Focco No início do período de estágio, as saídas de ferramentas eram alimentadas no GPF (sistema do gerenciamento) e posteriormente necessitavam ser alimentadas novamente no sistema Focco (sistema ERP da Zen). Esse processo era todo manual, pois os dois sistemas não se comunicavam. As baixas manuais duplicadas eram demoradas e passíveis de erros. Atrasos na alimentação do Focco no fechamento do mês causavam distorções nos custos, pois
  • 36.
    35 as requisições passavama ser alimentadas somente no mês posterior, logo, os indicadores baseados no Focco ficavam distorcidos e prejudicavam as decisões gerenciais. Os gráficos 1 e 2 mostram o consumo de ferramentas pelo Focco e GPF respectivamente. Nota-se que o mês de março teve grande parte das saídas apontadas no mês de abril, pois o Focco foi fechado pela controladoria e a movimentação foi baixada no mês seguinte. O consumo varia mês a mês pelo volume de produção e isso é normal, mas o que se pode notar comparando-se os gráficos é a diferença no mesmo mês entre os valores do software GPF e do Focco (ERP) ocasionado pelo atraso nas baixas das ferramentas. Gráfico 1 – Consumo de ferramentas no Focco Fonte: Elaborado pelo autor. Gráfico 2 – Consumo de ferramentas no GPF Fonte: Elaborado pelo autor.
  • 37.
    36 Medidas adotadas: Foi solicitadoao estagiário providenciar, juntamente com o setor de TI da Zen, uma maneira de integração, que deveria contar também com a atuação da TI da Seco Tools. O trabalho de programação logicamente foi dos especialistas em informática, ficando o estagiário como líder da ação e intermediador, responsável pelo fornecimento de informações do gerenciamento que fossem relevantes para o desenvolvimento do trabalho. Para o mês seguinte, em abril, a comunicação já era possível através da importação no Focco de um relatório de saídas do GPF. A programação foi feita para gerar e-mails com os itens que não alimentaram o Focco por não possuir saldo. Assim, os itens que falham devem ser investigados os motivos pelos quais não foi possível baixar. Foi então realizado um inventário no almoxarifado e corrigido os dois sistemas de acordo com as quantidades do estoque físico. Para a realização do inventário foi utilizado a planilha mestre para auxiliar na localização, conferência do item e anotação das quantidades para alimentar os sistemas. Após o inventário alguns itens com saldo positivo continuavam a gerar falhas na alimentação do Focco. Verificando as causas prováveis, foi identificado que a causa era que alguns itens foram transferidos do almoxarifado central para o gerenciamento e não foi alterado o almoxarifado no seu cadastro. Com isso o saldo ficava em um almoxarifado e as baixas eram realizadas em outro que estava sem saldo, gerando erro na transação. Foi então solicitado ao setor de TI para corrigir esse problema revisando via programa todos os itens do almoxarifado do gerenciamento. 2.4.3 Organização e identificação do local A proposta para melhorar a organização do Gerenciamento de Ferramentas foi baseada na metodologia 5S: senso de utilização, senso de ordenação, senso de limpeza, senso de saúde e senso de autodisciplina. 2.4.3.1 Eliminação dos materiais sem consumo Situação atual:  Diversos materiais sem consumo permanecem estocados;  Não tem definida uma frequência para revisão do estoque;
  • 38.
    37  Excesso de capitalem estoque. Perdas:  Utilização desnecessária de espaço físico;  Perdas financeiras com capital parado e controle de estoque. Valor em estoque / consumo mensal = 3,6. O indicado é no máximo 2, baseado em boas práticas de empresas bem conceituadas no mercado como Mahle e Eaton, que possuem o gerenciamento de ferramentas implantado. Proposta:  Anualmente identificar os materiais sem consumo nos últimos 18 meses;  Fazer uma análise prévia dos itens que deverão permanecer em estoque por motivos especiais;  Enviar a lista de materiais sem consumo para a análise da engenharia de processos da Zen Sistemas e Zen Aluminium, e para o setor de ferramentaria, solicitando resposta em até 30 dias dos materiais que deverão continuar em estoque;  Dispor os materiais com possibilidade de eliminar do estoque da seguinte forma:  Materiais com possibilidade de consumir alternativamente, requisitar para retirar do estoque, entregar no setor e inativar o item;  Materiais com tecnologia obsoleta ou não aplicável aos processos atuais, vender como sucata ou doar para instituições como o SENAI, por exemplo.  Materiais com tecnologia aplicável aos processos, alocar na Caixa de obsoletos, alterar no cadastro do item o local para o novo endereço e o status para inativo. Gerando necessidade de consumo o item será ativado para registrar a saída e novamente inativado. Se o mesmo voltará a ter consumo frequente, deverá ser ativado, redefinido as quantidades de estoque e reposição, e alocado em novo local de estoque.
  • 39.
    38 A lista demateriais sem consumo a 18 meses realizada em maio foi de 180 itens, o que corresponde a um valor de R$ 124.800, 00 reais. A mesma está seguindo a análise conforme proposto acima, mas ainda não foi finalizada a atividade até o final do estágio. 2.4.3.2 Alteração do layout Situação atual:  Espaço mal aproveitado, impossibilitando a transferência do restante das ferramentas do almoxarifado central para o Gerenciamento de Ferramentas;  Mesa de reunião oval maior que a necessidade;  Disposição das escrivaninhas dificulta o atendimento porque o gerenciador fica longe do balcão;  Arquivo com as gavetas trancadas e sem condições de uso.
  • 40.
    39 Figura 14 –Layout atual Fonte: Elaborado pelo autor.
  • 41.
    40 Situação proposta:  Melhor aproveitamentodo espaço, possibilitando a adição de prateleiras e a transferência do restante das ferramentas do almoxarifado central para o Gerenciamento de Ferramentas;  Mesa de reunião redonda para apenas 4 cadeiras;  Disposição das escrivaninhas onde o gerenciador fica próximo do balcão;  Arquivo em boas condições e com espaço para armazenamento dos catálogos dos fornecedores.
  • 42.
    41 Figura 15 –Layout proposto Fonte: Elaborado pelo autor.
  • 43.
    42 O novo layoutimplementado foi bem aceito pela equipe, que comprovou os benefícios que foram previstos. Não teve investimento porque a mesa e o arquivo novos estavam sem uso em outro local da empresa. 2.4.3.3 Identificação das ferramentas Situação atual:  Materiais diferentes armazenados no mesmo box;  Identificação dos códigos do produto e quantidades de estoque em vários modelos de etiqueta e marcação à caneta;  Excesso de materiais sobre as mesas e armários, como peças e ferramentas;  Excesso de materiais usados aguardando seleção e destinação. Figura 16 – Situação atual dos materiais Fonte: Elaborado pelo autor. Perdas:  Mistura de materiais, podendo causar furos de estoque, entrega errada de item à produção e consequentemente geração de sucata e parada de máquina;  Aspecto visual ruim;  Dificuldade de localização e gestão visual dos materiais;  Desperdício de espaço e dinheiro. Situação proposta:  Armazenar produtos diferentes em box distintos, ou seja, endereços distintos;  Selecionar os materiais usados destinando-os para reaproveitamento, recondicionamento, venda para reciclagem ou sucata;
  • 44.
    43  Ao retornar daprodução, selecionar imediatamente e depositar as ferramentas usadas nos locais específicos definidos:  Materiais seminovos nas gavetas de retorno de kanban correspondentes à célula, localizadas nas gavetas 3 a 5 do armário B;  Materiais para reaproveitamento nas gavetas 6 e 7 do armário B;  Ferramentas para recondicionamento na gaveta 10 do armário B;  Ferramentas para reciclagem na Seco (apenas metal duro) no coletor sob a bancada de preset e posteriormente no container de reciclagem;  Ferramentas de aço para descarte no coletor sob a bancada de preset;  Ferramentas de cerâmica, Cermet, CBN, PCD e HSS no coletor sob a bancada de preset;  Ferramentas para teste, suportes e acessórios em condições de uso, no armário C.  As peças e ferramentas em análise que devem ficar sobre a escrivaninha, coloca-las sobre o material plástico de tamanho A4, conforme cartilha 5S Zen;  Identificar os produtos do estoque com o modelo de etiqueta da figura 14, que contempla todas as informações necessárias em apenas uma etiqueta. Código GPF Código plano montagem Código Focco Estoque mínimo 50 IN-2041.0 9911636 180 360 9911636 Estoque máximo Código de barras Figura 17 – Modelo de etiqueta para itens de estoque Fonte: Elaborado pelo autor. 2.4.4 Redução de custos baseado na análise do consumo das células O Gerenciamento de Ferramentas prioriza a atuação nas células que possuem maior consumo de ferramentas ou maior custo de ferramentas por peça produzida. Baseado nesses critérios foi estudado o processo de laminação de rosca e proposto alternativa para redução do
  • 45.
    44 consumo. Outra formade melhorar os processos através das ferramentas é reduzindo o tempo de ciclo para melhorar a produtividade. A seguir são apresentados os dois casos. 2.4.4.1 Melhorar aproveitamento dos machos laminadores Esta proposta se baseia no estudo de um controle mais eficiente da vida útil dos machos laminadores de rosca. O produto que é laminado a rosca interna é o eixo da polia, na célula 35 da usinagem. Figura 18 – Peça e macho laminador Fonte: Elaborado pelo autor. A laminação de rosca interna é um processo de conformação do aço, onde a ferramenta denominada macho laminador é inserida com rotação no sentido da rosca, entrando no furo da peça. O furo possui diâmetro menor, fazendo com que o filete da ferramenta entre no material e o material escoe sobre a ferramenta no vão da mesma, formando a rosca da peça. Figura 19 – Secção transversal mostrando o filete de rosca laminada Fonte: Elaborado pelo autor.
  • 46.
    45 Os machos laminadoresrepresentam 65% do custo com ferramentas da célula. Situação atual:  A máquina sinaliza ao operador quando a vida útil da ferramenta por peça produzida chega ao limite e também gera alarme quando o esforço da laminação excede o limite de torque especificado na receita;  A vida útil é a mesma para todas as peças, independentemente do comprimento da rosca;  As receitas carregam o valor de torque máximo, sendo que o torque muda somente por tipo de rosca (M14=30N*m; M16=35N*m e M17=38N*m), não levando em consideração que o comprimento da rosca pode alterar o torque necessário para a operação de laminação;  As receitas (programas) são escalonados de 3 em 3 milímetros de comprimento de rosca. Esse escalonamento tem dois objetivos: deslocar a ferramenta somente o necessário para otimizar o tempo de ciclo, e garantir a correta formação da rosca em toda sua extensão.  Não havia sido realizado nenhum estudo até o início do estágio. Perdas:  Como os controles atuais não diferenciam as peças com comprimento de rosca diferentes, ferramentas boas podem ser descartadas e ferramentas já desgastadas podem permanecer em operação e produzir peças de má qualidade; Figura 20 – Ferramenta trocada em condições de uso (à esquerda) e desgastada (à direita) Fonte: Elaborado pelo autor.
  • 47.
    46 Estudo realizado: Para quefosse possível ter dados reais do torque de laminação, foram produzidas várias peças para obter diversas combinações das três variáveis principais da peça: tipo, comprimento e sobremetal da rosca. Essas peças foram laminadas com ferramenta nova e ferramenta com desgaste. 22 41,8 Ferramenta desgastada Sobremetal na máxima Tipo M14 M16 M17 10 22,1 23,3 27,1 13 16 19 Comprimento (mm) Comprimento (mm) Ferramenta desgastada Sobremetal na mínima Tipo M14 M16 M17 10 26,5 26,4 33,5 13 16 19 44,2 47,2 22 36,3 Valores de torque em N*m 37,1 41,0 Quadro 3 – Torque com ferramenta desgastada e variação do sobremetal Fonte: Elaborado pelo autor. Pela análise do quadro 3, a ferramenta desgastada o torque aumenta em média 5,4 N*m entre sobremetal na mínima e na máxima. O torque aumenta em média 3,9 N*m a cada 3 mm (1,3 N*m/mm). 22 32,8 Ferramenta nova Sobremetal na máxima Tipo M14 M16 M17 10 18,0 23,3 26,3 13 16 19 Comprimento (mm) Comprimento (mm) Ferramenta nova Sobremetal na mínima Tipo M14 M16 M17 10 23,1 30,0 34,2 13 16 19 42,4 44,3 22 27,0 Valores de torque em N*m 34,3 35,3 Quadro 4 – Torque com ferramenta nova e variação do sobremetal Fonte: Elaborado pelo autor. Pela análise do quadro 4, a ferramenta nova o torque aumenta em média 7,1 N*m entre sobremetal na mínima e na máxima. O torque aumenta em média 2,5 N*m a cada 3 mm (0,8 N*m/mm).
  • 48.
    47 Pôde ser observadocom o estudo que, em todos os tipos de rosca, o limite único de torque foi ultrapassado nos comprimentos maiores. Isso significa que nestas peças a ferramenta seria retirada de uso ainda em boas condições, representando perda financeira. O experimento mostrou que a variação do sobremetal entre a medida mínima e máxima tem influência significativa no torque, sendo 5,4 N*m a variação na ferramenta desgastada e 7,1 N*m na ferramenta nova. Como o torque entre início e fim de vida da ferramenta aumenta em média 3 N*m, isso indica que se o torque for definido para sobremetal na mediana e laminar uma peça na mínima, a máquina poderá exceder o limite de torque e levar o operador a efetuar a troca da ferramenta antes dela apresentar desgaste ideal. Comparando os dois quadros, constatou-se que o torque entre início e fim de vida do macho laminador aumenta em média 3 N*m. Considerando essa variação entre início e fim de vida da ferramenta e que a cada milímetro de comprimento de rosca o torque varia 3,9 N*m a cada 3 mm, então o uso de programas de 3 em 3 milímetros da situação atual não é adequada, mesmo que com variação do torque entre os programas. Baseado nesta constatação foi realizado novos testes com mais combinações de comprimento de rosca, utilizando peças com sobremetal mediano, com o objetivo de definir uma equação que representasse a variação do torque em relação ao comprimento de rosca. Comprimento (mm) Ferramenta desgastada Sobremetal mediano Tipo M14 M16 M17 10 23,5 24,8 28,9 13 28,6 30,8 33,9 16 32,5 34,8 37,8 19 36,4 39,1 42,3 22 38,3 42,5 43,3 Quadro 5 – Torque com ferramenta desgastada e sobremetal mediano Fonte: Elaborado pelo autor. Novamente foi constatado que nas peças acima de 16 milímetros de comprimento de rosca, o limite de torque foi ultrapassado. 34% das peças implantadas ou 28% das peças que produziram no último ano, possuem comprimento acima desse valor. Foi elaborado um gráfico e adicionado a linha de tendência que melhor representa a curva gerada pelos dados coletados em cada tipo de rosca.
  • 49.
    48 Gráfico 3 –Variação do torque pelo comprimento da rosca Fonte: Elaborado pelo autor. Utilizando o conhecimento obtido nas aulas de cálculo numérico, os dados acima foram submetidos a vários ajustes de curvas, procurando identificar qual das equações representava melhor os pontos gerados pelos dados. A equação mais adequada foi a potencial, representadas a seguir. A variação do torque na rosca M14, com 99,02% de certeza, é representada pela equação: ( ) ( ) A variação do torque na rosca M16, com 99,44% de certeza, é representada pela equação: ( ) ( ) A variação do torque na rosca M17, com 98,45% de certeza, é representada pela equação: ( ) ( ) Estas fórmulas devem ser utilizadas para calcular o torque adequado para cada peça.
  • 50.
    49 Situação proposta:  Eliminar olimite de vida útil por peça produzida, visto que a quantidade de peças necessárias para desgastar a ferramenta varia muito em função do comprimento da rosca;  Criar receitas (programas) específicas para cada peça, utilizando as funções definidas no estudo para determinar o limite de torque;  Verificar a possibilidade de diminuir a tolerância do sobremetal, visto que influencia diretamente no torque de laminação;  Estudar a viabilidade de controle da vida da ferramenta pela quantidade de metros de rosca laminada. Inicialmente foi alterado o limite de torque mantendo o escalonamento das receitas a cada 3 mm de comprimento de rosca. Os resultados obtidos até a data da realização deste relatório foram positivos, sendo que uma ferramenta produziu 5687 peças e a outra 5453 peças, mantendo a qualidade do produto. Como a duração da ferramenta é longa, não foi possível obter muitos dados, mas considerando que na situação anterior a ferramenta não ultrapassaria 4000 peças, o ganho até o momento foi de 39%. Esse percentual aplicado ao consumo do último ano geraria um retorno de R$ 33.000,00 reais. Foi iniciado o estudo de controle de vida útil por metro de rosca laminada. Uma ferramenta fez 7,73 metros de rosca e a outra fez 7,07 metros. Se constatado estabilidade neste método de controle numa amostragem maior, o mesmo poderá ser utilizado como controle principal e manter o monitoramento do torque para evitar dano à máquina gerado por uma possível avaria da ferramenta. Neste caso necessitará alterar o software da máquina, pois atualmente não possui esse recurso. O custo da alteração foi orçado em R$ 3.600, 00, valor que pelos ganhos obtidos até o momento é amortizado em 1,5 meses. 2.4.4.2 Ferramenta conjugada A polia de roda livre é um produto com boas perspectivas de mercado, e a empresa vem investindo e melhorando continuamente o produto e os processos. Um dos seus componentes, a polia arraste, é uma peça em que a quantidade de etapas e o tempo de processamento são relevantes na formação do custo.
  • 51.
    50 Após as etapasde usinagem do aço cru, as peças passam pelo processo de tratamento térmico para obter as propriedades mecânicas necessárias e em seguida são encaminhadas para uma última etapa de usinagem. Essa etapa de usinagem proporciona o acabamento superficial e o dimensional adequados à montagem de dois rolamentos internos, um em cada lado da peça. Figura 21 – Polia arraste Fonte: Elaborado pelo autor. Situação atual: Devido ao perfil da peça e das tolerâncias de forma da mesma, o processo de usinagem é realizado por duas ferramentas, cada uma acabando um alojamento de rolamento. As ferramentas são posicionadas uma de cada vez pelo tombo da torre, aproximadas da peça em avanço rápido e realizam a usinagem em avanço de usinagem. Figura 22 – Interior da máquina Fonte: Elaborado pelo autor.
  • 52.
    51 Os tempos daoperação estão demonstrados no quadro 6. Tempo máq. 30,40 Tempo Tempo Homem 5,10 35,50 Fadiga 10,98% Tempo c/ Nec. fadiga Pessoais 36,06 3,00% Tempo padrão Qtd. Pç/h 100% Eficiência Qtd. Pç/h c/ eficiência 37,14 97 86,75% 84 Quadro 6 – Tempos da operação atual Fonte: Elaborado pelo autor. Situação proposta: Em busca de redução do tempo de usinagem, foi proposta a utilização de uma ferramenta conjugada, na qual as duas ferramentas ficam na mesma posição da torre. Desse modo pode-se diminuir do ciclo o tombo da torre e minimizar o tempo de aproximação, sem que a qualidade da peça seja afetada, pois os parâmetros no momento da remoção do material permanecem inalterados. Criando um programa teste, foi possível simular a nova condição, onde foi constatado um ganho de 2,1 segundos por ciclo. O quadro 7 mostra os tempos e produção horária da situação proposta. Tempo máq. 28,30 Tempo Tempo Homem 5,10 33,40 Fadiga 10,98% Tempo c/ Nec. fadiga Pessoais 33,96 3,00% Tempo padrão Qtd. Pç/h 100% Eficiência Qtd. Pç/h c/ eficiência 34,98 103 86,75% 89 Quadro 7 – Tempos da operação proposta Fonte: Elaborado pelo autor. Comparando os dois quadros é possível determinar que em um mês trabalhando com duas máquinas é possível produzir 4620 peças a mais. Analisando de outra maneira pode-se dizer que a melhoria aumenta em 23,3 horas a capacidade produtiva, considerando a produção de 40 mil peças mensais. No apêndice A é utilizada a PAI para demonstrar o cálculo transformando o tempo em valor monetário, através da multiplicação pelo valor hora da máquina. O ganho anual estimado é de R$ 6.998,00 reais. Considerando um investimento de 2 mil reais com a nova ferramenta, a amortização do investimento ocorre em 3 meses e 13 dias.
  • 53.
    3 CONCLUSÃO Em conformidade comos objetivos acadêmicos do estagiário, o estágio proporcionou uma boa oportunidade de aplicar o conhecimento obtido na universidade com o propósito de gerar aprendizado prático no mercado de trabalho e crescimento profissional. Em relação aos resultados esperados pela empresa com a atuação do estagiário, o presente relatório demonstrou as atividades realizadas, as quais contemplaram ações de melhoria do local de trabalho, com resultados positivos às pessoas que trabalham nele e na eficiência das suas atividades. Foram apresentadas também propostas com ganhos financeiros através de melhorias do processo produtivo e no estoque de ferramentas, atendendo assim os objetivos do estágio.
  • 54.
    REFERÊNCIAS CHIAVERINI, V. Tecnologiamecânica – materiais de construção mecânica. 2 ed. São Paulo: Editora McGraw-Hill. v. 3, p.146-168., 1986. MARTINS, Eliane Ferreira. Apostila Gestão de Estoques. Disponível em: <http://www.administracao.ufcg.edu.br/adm_rec_mat_pat/Apostila%20Gestao%20de%20Est oques%202009.2.pdf>. TURINO, Carlos Eduardo; POSSAMAI, Osmar. Modelo para Redução e Gerenciamento de Estoques de Ferramentas de Corte em Empresas com Alto Volume de Usinagem – Caso TUPY FUNDIÇÕES LTDA. Artigo apresentado no XXII Encontro Nacional de Engenharia de Produção. Curitiba – PR, 23 a 25 de outubro de 2002. 8p, il.
  • 55.
  • 56.
    55 APÊNDICE A –FORMULÁRIO PAI – PROPOSTA DE ALTERAÇÃO DE INSERTOS PAI - PROPOSTA DE ALTERAÇÃO DE INSERTOS Nº 0000/13 LEVANTAMENTO DE INFORMAÇÕES DO TESTE Peça: Polias Arraste (RL) Célula ou Centro de Custo: 53; 116 Descrição, Nº Máquina e Nº Patrimônio: Mori Seiki CL200A, 116-06, 7911 Operação: Usinagem Após Tratamento Térmico Número da Ferramenta: 1e3 Data do Cálculo: 09/06/2013 Produção Mensal (Previsão PCP): 40.000 Custo da Hora Máquina (Financeiro): R$ 24,30 Custo por Peça (Até esta Operação): R$ 4,00 COMPARATIVO: ATUAL Fabricante do Suporte: Fornecedor 1 A25S-CTUNL11 / A01T-350-32.0-25L Suporte: Preço: R$ 1.155,80 Fabricante do Inserto: Fornecedor 1 Inserto: TNGN110304SCNN050C Quebra Cavaco: Classe: CBN050C Preço: R$ 291,00 Número de Arestas: 6 Vida Útil (peças por aresta): 1200 Sucatas Geradas a Cada Troca de Aresta: 1 Tempo de Troca (minutos): 2,00 Tempo Total Ciclo (segundos): 37,14 Sucata Mensal Gerada Trocas de Aresta: 33 Custo Mensal com Sucata: R$ 133,33 Custo Anual com Sucata: R$ 1.600,00 Ganho Mensal com Sucata: Ganho Anual com Sucata: Redução dos Gastos com Sucatas em: Consumo Mensal de Inserto: 5,56 Custo Mensal com Inserto: R$ 1.616,67 Custo Anual com Inserto: R$ 19.400,00 Ganho Mensal com Inserto: Ganho Anual com Inserto: Redução dos Gastos com Inserto em: Tempo Mensal Troca de Aresta (minutos): 66,67 Custo Mensal com Troca de Aresta: R$ 27,00 Custo Anual com Troca de Aresta: R$ 324,00 Ganho Mensal com Tempo de Troca de Aresta: Ganho Anual com Tempo de Troca de Aresta: Redução dos Gastos com Tempo de Troca de Aresta em: Redução do Tempo de Ciclo (seg.): Ganho Mensal com Tempo de Ciclo: Ganho Anual com Tempo de Ciclo: Investimento Inicial (Suportes, Insertos, Acessórios, etc.): Tempo de Amortização (meses): PROPOSTO Fornecedor 2 Especial Conjugado R$ 2.000,00 Fornecedor 2 TNGN110304SCNN050C CBN050C R$ 291,00 6 1200 1 2,00 34,98 33 R$ 133,33 R$ 1.600,00 R$ 0,00 R$ 0,00 0,00% 5,56 R$ 1.616,67 R$ 19.400,00 R$ 0,00 R$ 0,00 0,00% 66,67 R$ 27,00 R$ 324,00 R$ 0,00 R$ 0,00 0,00% -2,16 R$ 583,20 R$ 6.998,40 R$ 2.000,00 3,43 Ganho Total Mensal: R$ 583,20 Ganho Total Anual: R$ 6.998,40
  • 57.
    56 IMPLEMENTAÇÃO DA ALTERAÇÃO ALTERARPROGRAMAS ALTERAR FOLHA DE OPERAÇÃO ALTERAR PLANO DE MONTAGEM ALTERAR FMEA ALTERAR PLANO DE CONTROLE ALTERAR CUSTOS (FINANCEIRO) ALTERAR CADASTRO NO BDZ ALTERAR CADASTRO NO FOCCO ALTERAR TABELA DE INSERTOS TC-23.000 ALTERAR TABELA DE INSERTOS TC-22.000 ALTERAR TABELA DE ACESSÓRIOS TC-67.000 DISPOSIÇÃO DA FERRAMENTA PROPOSTA CADASTRAR NO ESTOQUE (FORGQ123) REDIMENSIONAR PARA QUANTIDADE ABAIXO QTDE. EM ESTOQUE NA ZEN: 1 Peças QTDE. EM ESTOQUE NO FORNCEDOR: 0 Peças DISPOSIÇÃO DA FERRAMENTA ANTERIOR REDIMENSIONAR PARA QUANTIDADE ABAIXO DEVOLVER SUCATAR QTDE. EM ESTOQUE NA ZEN: 2 Peças QTDE. EM ESTOQUE NO FORNCEDOR: CONSUMIR E INATIVAR 0 Peças OBS.: MATERIAL QUE NÃO TERÁ MAIS CONSUMO NÃO PODERÁ PERMANECER EM ESTOQUE COMENTÁRIOS: CARGO GERENCIADOR SUPERVISOR PRODUÇÃO SUPERVISOR PROCESSO CONTROLADORIA APROVAÇÃO NOME VISTO / DATA