SENAI – “Serviço Nacional de Aprendizagem Industrial”
Centro de Formação Profissional
“AFONSO GRECO”

PROJECAD

Praça Expedicionário Assunção, 168 – Bairro Centro
Nova Lima – MG – CEP: 34.000-000
Telefone: (31) 3541-2666
Presidente da FIEMG
Olavo Machado Júnior
Gestor do SENAI
Petrônio Machado Zica
Diretor Regional do SENAI e
Superintendente de Conhecimento e Tecnologia
Lucio Sampaio
Gerente de Educação
Edmar Fernando de Alcântara
SUMÁRIO:
Apresentação .................................................................................................04
1 – Iniciando o Trabalho com ProgeCAD ...................................................05
1.1 – Tela Inicial do ProgeCAD ......................................................................07
1.2 – Barra de Títulos .....................................................................................07
1.3 – Barra de Menus .....................................................................................07
1.4 – Barra de Ferramentas Padrão ...............................................................08
1.5 – Barra de Propriedades do Objeto ..........................................................08
1.6 – Barra de Ferramentas de Desenho .......................................................08
1.7 – Barra de Ferramentas Modify ................................................................08
1.8 – Indicação do Sistema de Coordenadas do Usuário ..............................08
1.9 – Caixa de Comandos ..............................................................................09
1.10 – Barra de Comentários ou de Status ...................................................09
1.11 – Unidades de Medidas do Desenho .....................................................09
2 – Sistema de Coordenadas ......................................................................09
2.1 – Coordenadas Absolutas ........................................................................10
2.2 – Coordenadas Relativas .........................................................................11
2.3 – Coordenadas Polares ...........................................................................12
2.4 – Considerações ......................................................................................12
2.4.1 – Vírgula e Ponto ...................................................................................12
2.4.2 – Tecla F7 .............................................................................................12
2.4.3 – Tecla F8 .............................................................................................13
3 – Barra de Ferramentas Draw ..................................................................14
3.1 – Comando Line .......................................................................................14
3.2 – Considerações ......................................................................................14
3.2.1 – Tecla <Enter> .....................................................................................14
3.2.2 – Limites da Tela ...................................................................................15
3.2.3 – Seleção ..............................................................................................15
3.2.4 – Pan Realtime ......................................................................................15
3.2.5 – Zoom Realtime ...................................................................................15
3.2.6 – Zoom Window (Z <Enter> W <Enter>) ...............................................16
3.2.7 – Zoom All (Z <Enter> A <Enter>) .........................................................16
3.3 – Retangle (Retângulo) ............................................................................16
3.4 – Circle (Círculo) ......................................................................................17
3.5 – Construction Line (Linha de Construção) ..............................................17
3.6 – Polinine .................................................................................................18
3.7 – Polygon (Polígono) ................................................................................19
3.8 – Arc (Arco) ..............................................................................................19
3.9 – Elipse ....................................................................................................19
3.10 – Multiline Text (Texto) ..........................................................................20
3.11 – Hachura ..............................................................................................21
3.12 – Blocks .................................................................................................22
3.12.1 – Criando Bloco ...................................................................................22
3.12.2 – Inserindo o Bloco .............................................................................23
4 – Comandos de Precisão .........................................................................24
4.1 – Exercícios ..............................................................................................25
5 – Menu Modify ...........................................................................................26
5.1 – Erase (Borracha) ...................................................................................26
5.2 – Copy (Copiar) ........................................................................................26
5.3 – Mirror (Espelho) ....................................................................................26
5.4 – Offset ....................................................................................................27
5.5 – Array Retangular ...................................................................................28
5.6 – Array Polar ............................................................................................30
5.7 – Move (Mover) ........................................................................................31
5.8 – Rotate (Rodar) ......................................................................................31
5.9 – Scale (Escala) .......................................................................................32
5.10 – Trim .....................................................................................................32
5.11 – Extend (Estender) ...............................................................................33
5.12 – Chanfer (Chanfro) ...............................................................................34
5.13 – Fillet ....................................................................................................35
5.14 – Explode ...............................................................................................36
6 – Dimensionando o Desenho ...................................................................38
6.1 – Linear Dimension (Dimensão Linear) ....................................................38
6.2 – Alterando a Dimensão no ProgeCAD.....................................................39
6.2.1 – Dimension Lines (Linhas de Dimensão) ...........................................40
6.2.2 – Extension Lines (Linhas de Extensão) .............................................41
6.2.3 – Arrows ou ponta de seta ..................................................................42
6.2.4 – (Aparência do Texto) ........................................................................42
7– Layers ou Camadas ................................................................................44
7.1 – Exercício de Utilização de Layers .........................................................47
7.2 – Exercício – Figuras ...............................................................................47
8 – Escala .....................................................................................................49
9– Imprimindo um Arquivo no ProgeCAD .................................................51
9.1 – Configurando a página de impressão ...................................................51
9.2 – Gerenciador de configuração de página ...............................................52
9.3 – Configuração de página ........................................................................53
9.4 – Aplicando uma escala ao desenho .......................................................58
9.5 – Alterando o tamanho da caixa de visão ................................................60
9.6 – Escrevendo dentro das visões ..............................................................61
9.7 – Criando novas visões do desenho ........................................................61
9.8 – Construções de Layouts de Página .......................................................63
9.9 – Formatos de papel .................................................................................64
9.10 – Imprimindo o desenho .........................................................................68
10 – Exercícios ...............................................................................................70
Apresentação

“Muda a forma de trabalhar, agir, sentir, pensar na chamada sociedade do
conhecimento.“
Peter Drucker

O ingresso na sociedade da informação exige mudanças profundas em todos
os perfis profissionais, especialmente naqueles diretamente envolvidos na
produção, coleta, disseminação e uso da informação.
O SENAI, maior rede privada de educação profissional do país,sabe disso , e
,consciente do seu papel formativo , educa o trabalhador sob a égide do
conceito da competência:” formar o profissional com responsabilidade no
processo produtivo, com iniciativa na resolução de problemas, com
conhecimentos técnicos aprofundados, flexibilidade e criatividade,
empreendedorismo e consciência da necessidade de educação
continuada.”
Vivemos numa sociedade da informação. O conhecimento, na sua área
tecnológica, amplia-se e se multiplica a cada dia. Uma constante atualização se
faz necessária. Para o SENAI, cuidar do seu acervo bibliográfico, da sua
infovia, da conexão de suas escolas à rede mundial de informações – interneté tão importante quanto zelar pela produção de material didático.
Isto porque, nos embates diários, instrutores e alunos, nas diversas oficinas e
laboratórios do SENAI, fazem com que as informações, contidas nos materiais
didáticos, tomem sentido e se concretizem em múltiplos conhecimentos.
O SENAI deseja, por meio dos diversos materiais didáticos, aguçar a sua
curiosidade, responder às suas demandas de informações e construir links
entre os diversos conhecimentos, tão importantes para sua formação
continuada !
Gerência de Educação e Tecnologia
1 – INICIANDO O TRABALHO COM O PROGECAD
ProgeCAD é um programa utilizado para fazer desenhos em 2D ou 3D,
utilizado como ferramenta principal para trabalho nas áreas de engenharia,
arquitetura, mecânica, etc..
Para iniciar o trabalho com o ProgeCAD escolha: "Iniciar", "Programas" e
escolha a opção "ProgeCAD 2010", por exemplo. O programa será aberto.
Após o programa aberto para permitir que o usuário escolha realizar o trabalho
em milímetros ou em polegadas. Para que esta tela apareça, clique em File +
New que a tela Star irá aparecer. Para fazer isso no Autocad digite o comando
STARTUP e pressione a tecla Enter. Na parte de baixo da tela do AutoCAD
você consegue visualizar o comando dado e você receberá um retorno
dizendo:
Inserir um novo valor para Startup <0>.
Digite o número 1 e pressione Enter.
Feche o autoCAD e abra novamente. Agora a telinha de início mostrada abaixo
irá aparecer.
Antes de iniciar o trabalho com o programa, você deverá escolher uma das
opções da janela chamada "Start (Inglês) ou “Começar” (português) mostrada
abaixo.
Use a Wizard ou usar assistente
Configura unidades de medida, estilos, área de desenho, tamanho de texto,
etc., baseado em modelos existentes.

Use a template ou Usar modelo
Oferece modelos de páginas existentes já prontas para que você possa
trabalhar. Você poderá escolher o tamanho de página que precisar (A0, A1, A2,
A3, A4, etc.)

Start From Scratch ou Começar do Zero
Através desta opção você poderá escolher somente a configuração da medida
que você utilizará durante o seu trabalho. Você poderá escolher entre os
sistemas métrico ou English. O sistema English trabalha com medidas em
polegadas e pés. Este não é o nosso sistema de medida. O sistema métrico
trabalha em milímetros. Utilize o sistema de medidas métrico.

Open a Drawing ou abrir desenho
Abre um desenho já existente no ProgeCAD.

Trabalhar sem passar por esta tela implica em correr o risco de se trabalhar
com o ProgeCAD em polegadas sem saber.
Escolha o botão “Start from scratch” ou “Começar do zero”. Sempre
utilizaremos esta opção.
Marque a opção “Métrica” existente nesta tela para realizar o trabalho em
milímetros. Pressione OK para iniciar o trabalho com o CAD.
1.1 - TELA INICIAL DO PROGECAD

Barra de Títulos

Barra de Menus

Barra de Ferramentas Padrão

Barra de Propriedades de Objeto
Barra de Ferramentas de Desenho

Barra de Ferramentas Modify

Sistema de Coordenadas do Usuário

Caixa de Comandos

Barra de Comentários

1.2 - BARRA DE TÍTULOS
Exibe o nome do arquivo com o qual você está trabalhando e permite o
controle da janela através dos botões minimizar, maximizar/restaurar e fechar.

1.3 - BARRA DE MENUS
Exibe o menu de opções para realizarmos os trabalhos com o ProgeCAD.
Detalharemos os menus durante o trabalho com o programa.
1.4 - BARRA DE FERRAMENTAS PADRÃO
Barra com botões de atalho. Esta barra oferece uma maneira mais fácil e
rápida de realizarmos operações existentes na barra de menus.
Exibe alguns desenhos já conhecidos como:
Cria um novo arquivo.

Abre um arquivo existente no ProgeCAD.

Grava o trabalho.

Imprime um trabalho.

Visualizar impressão.

Recortar, copiar e colar informação.
1.5 - BARRA DE PROPRIEDADES DO OBJETO
Determina características do objeto como cor do objeto, tipo de linha, tamanho
de um texto, etc.

1.6 - BARRA DE FERRAMENTAS DE DESENHO
Esta barra equivale à opção "Draw" da "Barra de Menus”. Esta barra exibe
botões que permitem a construção de desenhos no ProgeCAD, através de
elementos como linha, polígono, retângulo, círculo, arco, texto, etc..

1.7 - BARRA DE FERRAMENTAS MODIFY
Modifica um elemento do desenho.

1.8 - INDICAÇÃO DE SISTEMA DE COORDENADAS DO USUÁRIO
Indica o plano de trabalho utilizado pelo usuário. Podemos trabalhar
utilizando três planos, X (plano horizontal), Y (plano vertical) e Z
(plano normal à tela para indicar profundidade).

10
1.9- CAIXA DE COMANDOS
Local onde digitamos os comandos e informações solicitadas pelo ProgeCAD.
Através desta caixa o programa interage com o usuário, pedindo e recebendo
informações. O ProgeCAD só estará pronto para aceitar um novo comando, se
na barra de comandos estiver exibindo a mensagem: command:. Para ocultar
a caixa de comando basta dar um clique na barra de comentários e para volta a
visualização e só clicar novamente.

1.10 - BARRA DE COMENTÁRIOS OU DE STATUS
Exibe opções e comentários que auxiliam durante o trabalho com o ProgeCAD.
À diteita desta barra, há uma numeração que indica a posição do cursor na
tela. Para desabilitar a indicação da posição do cursor pressione a tecla <F6>
do teclado.

Ainda na barra de comentários encontramos as opções:
Grid (F7)

Habilita/desabilita a exibição de pontos que auxiliam durante a
confecção do desenho.
Snap (Ctrl + B) Liga/desliga a atração aos pontos do Grid.
Ortho (F8)
Força movimentação do cursor no sentido horizontal ou vertical.
Esnap (F3)
Liga/desliga a atração a pontos de um objeto já existente (ponto
final, ponto do meio, ponto central etc.). Este recurso ajuda a
elaborar o desenho com mais precisão.
1.11 - UNIDADE DE MEDIDAS DO DESENHO
Trabalharemos com todos os desenhos em milímetro. Esta opção é escolhida
quando iniciamos o programa, através da caixa Start Up ou Criar novo
desenho, comentada no início da apostila.

2 - SISTEMA DE COORDENADAS
O ProgeCAD trabalha com um sistema de coordenadas que informam a
posição dos pontos que compõem os objeto na tela. Temos três eixos: X, Y e
Z. O eixo X informa a localização do ponto no sentido horizontal. O eixo Y
informa a localização do ponto no sentido vertical e o eixo Z informa a
localização do objeto em um plano normal ao plano X e Y. Este último plano é
utilizado quando se precisa trabalhar com objetos em 3D. Portanto não o
estudaremos. Quando informarmos a localização de um ponto, utilizaremos
somente X e Y. O valor de Z será considerado "Zero".

11
2.1 - COORDENADAS ABSOLUTAS
Utilizamos o sistema de coordenadas absolutas, quando sabemos exatamente
a localização do objeto na página do ProgeCAD. Para construirmos uma reta,
precisamos de dois pontos. Se vamos fazer uma reta, temos que saber a
localização exata em (X,Y) do ponto de início e do ponto final.
É possível fazer elementos informando a posição real da página onde eles vão
ficar. Estas são as coordenadas absolutas.
Vejamos um exemplo:
Vamos fazer uma linha que vai do ponto (0,0)mm da janela do ProgeCAD até o
ponto (150,100) mm, ou seja, 150 mm para a direita e 100 mm para cima.
01 - Clique no botão line para fazer a linha ou escolha "Draw" e depois
"Line".
Na barra de comandos aparecerá a mensagem: "Line from Point:"
pedindo o ponto inicial da linha.
02 - Informe o início da linha que é 0,0 digitando: 0,0 e aperte <Enter>.
Aparecerá a mensagem <End point:> pedindo o próximo ponto para formar a
linha.
03 - Informe o próximo ponto digitando: 150,100 e aperte <Enter>.
Aparecerá novamente a mensagem <End point:>. O ProgeCAD quer saber se
você quer formar mais linhas.
04 - Para terminar o trabalho aperte a tecla <Enter>.
Você acabou de fazer uma linha que começa no ponto (0,0) da página e vai até
o ponto (150,100).
y
100
Ponto 150,100

150

x

Ponto 0,0

Este sistema de coordenadas absolutas não é muito utilizado, porque quase
sempre não sabemos a localização dos objetos na página do ProgeCAD.

12
2.2 - COORDENADAS RELATIVAS
Este sistema de coordenadas permite a formação de um objeto a partir de um
ponto qualquer da página. Para informarmos a localização de um ponto,
utilizaremos o comando "@X,Y".
Vejamos o exemplo a seguir:
Construiremos um retângulo de 100 mm de largura e 50 mm de altura
utilizando a ferramenta de linha e o sistema de coordenadas relativas.
01 - Clique no botão line para fazer a linha ou escolha "Draw" e depois
"Line".
02 - Quando aparecer Start of Line na barra de comandos, clique em qualquer
lugar da tela.
03 - Ao aparecer a mensagem End Point: escreva @100,0 e aperte <Enter>
para fazer uma linha a 100mm à direita na horizontal a partir do último ponto
informado. Veja na figura.
04 - To Point: @0,-50 e aperte <Enter> para fazer uma linha a 50mm para
baixo na vertical a partir do último ponto informado. Veja na figura.
05 - To Point: @-100,0 e aperte <Enter> para fazer uma linha a 100mm para a
esquerda na horizontal a partir do último ponto informado, a partir do último
ponto informado. Veja na figura.
06 - To Point: @0,50 e aperte <Enter> para fazer uma linha a 50mm para cima
na vertical, a partir do último ponto informado. Veja na figura.

Início

1
5

4

@-100,0

2

@0,50

@-100,0

@0,50

3

13
2.3 - COORDENADAS POLARES
Podemos fazer um traço utilizando coordenadas polares, quando sabemos o
comprimento deste traço e sua inclinação.
Uma coordenada polar é feita da seguinte forma: @"distância"<"ângulo".
Vamos fazer uma reta de 100 mm de comprimento a um ângulo de 30°.
01 - Clique no botão line ou escolha "Draw" e depois "Line".
02 - Quando aparecer Start of Line na barra de comandos, clique em qualquer
lugar da tela.
03 - Ao aparecer a mensagem End Point: escreva @100<30 para fazer uma
linha de 100mm de comprimento com uma inclinação de 30°. Veja na figura.

100 mm

30°

2.4 – CONSIDERAÇÕES
2.4.1 - VÍRGULA E PONTO
No AutoCAD a vírgula e o ponto têm funções específicas.
A Vírgula é utilizada quando vamos informar uma coordenada de um ponto. Ela
separa a ordenada da abscissa, ou seja, separa a informação vertical e
horizontal que você deu para a localização do ponto.
O Ponto é utilizado quando é preciso informar um valor que possui casas
decimais. Ex: para informarmos o número DEZ E MEIO digitamos: 10.5 e não
10,5 como estamos acostumados.
2.4.2 - TECLA F7
Habilita ou desabilita a exibição das grids. Faz a mesma função da opção GRID
da Barra de Status.
14
2.4.3 - Tecla F8
Força a movimentação do cursor na horizontal ou na vertical. Faz a mesma
função da tecla ORTHO existente na barra de Status.
Podemos desenhar rapidamente uma figura composta de linhas retas
horizontais e verticais. Veja a figura abaixo:
5

4
3
80mm

2
150mm

40mm
90mm

50mm
230mm

1

6

Vamos construir esta figura.
01 - Verifique se a opção ORTHO da barra de status está ligada. Se não
estiver, dê dois cliques sobre ela ou aperte a tecla <F8> do teclado.
02 - Clique no comando "Line" ou linha para fazer a figura.
03 - Aparecerá: Start of Line. Clique em qualquer ponto na tela para iniciar o
trabalho com as linhas. Este primeiro ponto será o ponto indicado com o
número 1 no desenho acima.
04 - End point: - Arraste o mouse para cima, digite 50 e aperte <Enter>. Ao
arrastar o mouse para cima com a opção ORTHO ligada, o programa considera
o valor de X (horizontal) como sendo zero e o valor de Y (vertical) positivo. Está
feita a linha 1-2.
05 - End point: - Arraste o mouse para a direita, digite 150 e <Enter>. Ao
arrastar o mouse para a direita com a opção ORTHO ligada, o programa
considera que o valor de X é positivo e o valor de Y é zero. Esta é a linha 2-3.
06 - End point: - Arraste o mouse para cima, digite 40 e aperte <Enter>.
07 - End point: - Arraste o mouse para a direita, digite 80 e aperte <Enter>.
08 - End point: - Arraste o mouse para baixo, digite 90 e aperte <Enter>.
09 - End point: - Digite Close para fechar a figura ou faça: arraste o mouse
para a esquerda, digite 230 e aperte <Enter>. A figura está feita.
15
3 - BARRA DE FERRAMENTAS DRAW
Todas as opções existentes na barra de ferramentas "Draw" estão disponíveis
no menu "Draw". Você poderá escolher entre clicar no botão correspondente
ao comando ou clicar no menu "Draw" e escolher o nome do comando.
3.1 - Comando Line ou Linha
Você já conhece este comando. Para acessá-lo, clique no botão line
existente na barra de ferramentas de desenho ou escolha: "Draw/Line"
ou Desenhar/Linha.
O ProgeCAD exibirá a mensagem Start of Line: (linha do ponto) na barra de
comandos. Clique em um ponto ou informe o primeiro ponto através de
coordenadas. O ProgeCAD exibirá a mensagem:
End point: - Informe o próximo ponto clicando na tela ou digite as coordenadas
do próximo ponto. Aperte <Enter>. O ProgeCAD continuará exibindo a
mensagem End point: para que você possa informar os próximos pontos e
fazer novas linhas. Se você não desejar continuar fazendo linhas, aperte a
tecla <Enter> para terminar o comando.
3.2 – CONSIDERAÇÕES
Antes de prosseguirmos com o menu Draw, faremos algumas considerações
importantes com relação à visualização do desenho na página e à utilização do
mouse para que você possa trabalhar de maneira mais eficaz.
3.2.1 - TECLA <ENTER>
A tecla <Enter> confirma a digitação de uma informação. Apertando <Enter>,
conseguimos repetir o último comando utilizado.
O Botão direito do mouse funciona como a tecla <Enter>. Portanto, para
confirmar ou terminar um comando, pode-se utilizar este botão.
Tecla <Enter> no ProgeCAD

16
3.2.2 - LIMITES DA TELA
O ProgeCAD possui uma página de trabalho, mas não precisamos trabalhar
somente dentro dela. Podemos fazer a planta de uma casa em dimensões
reais. A prancheta de trabalho do ProgeCAD tem dimensões infinitas.
Para imprimir, reduzimos o trabalho e informamos a escala de redução.
Portando, é importante sabermos trabalhar com visualização do objeto na
página. A seguir veremos os comandos de visualização.
3.2.3 – SELEÇÃO
Para selecionar elementos na tela do AutoCAD basta clicar no elemento que se
deseja selecionar e ele exibirá as marcas de seleção. Se quiser apagar um
objeto selecionado, aperte a tecla "Delete" do teclado.
Para selecionar vários objetos, é preciso fazer uma janela envolvendo estes
objetos. Esta janela é feita clicando uma vez na tela para informar um dos
cantos da janela e outra vez para informar o canto oposto.
Se você fizer a janela de seleção da esquerda para a direita somente serão
selecionados os objetos que estiverem contidos totalmente na janela. Se a
janela for feita da direita para a esquerda, serão selecionados todos os objetos
dentro da janela e também os objetos em que a linha de seleção estiver
tocando.
3.2.4 - PAN REALTIME OU PAN EM TEMPO REAL
Este é o botão do comando Pan, existente na barra de ferramentas
padrão. Ele é utilizado para mover a tela para que você veja
informações que não podem ser vistas porque estão além dos limites
do vídeo. Funciona como as barras de rolagem. Para ver o seu funcionamento,
você deve ter um desenho na tela.
01 - Clique no botão Pan.
02 - Clique na tela, mantenha o botão do mouse pressionado e arraste para
qualquer lado. O ProgeCAD levará você para o lado arrastado.
03 - Para sair deste comando, aperte <Enter> ou <Esc>.

3.2.5 - ZOOM REALTIME OU ZOOM EM TEMPO REAL
Este comando é utilizado para que o usuário possa aproximar ou
afastar a figura, aumentando ou diminuindo o campo de visualização do
seu trabalho. Para utilizá-lo você deve ter uma figura em sua tela.
01 - Clique no botão Zoom Realtime.
02 - Clique na tela, mantenha o botão do mouse pressionado e arraste para
cima para ver a figura mais de perto ou arraste para baixo para afastar a figura.
03 - Para sair deste comando, aperte <Enter> ou <Esc>.

17
3.2.6 - ZOOM WINDOW OU JANELA DE ZOOM
Este botão permite que você visualize mais de perto as informações da
tela, através de uma janela de seleção. Para visualizar um detalhe, siga
os passos.
01 - Clique em Zoom Window.
02 - Na barra de comandos aparecerá: First corner: para que você informe o
primeiro canto da janela. Clique no primeiro ponto para envolver o detalhe que
deseja ver.
03 - Aparece Other corner: Informe o outro canto da janela de seleção.
O AutoCAD exibirá o conteúdo desta janela de seleção na tela inteira.
3.2.7 - ZOOM ALL OU ZOOM TOTAL
Clicando neste botão, você pode ver a página de trabalho do ProjeCAD
nos limites do monitor.
3.3 - RETANGLE OU RETÂNGULO
Para fazer um retângulo, clique na ferramenta de retângulo da barra
Draw (desenho) ou no menu "Draw" e depois em "Rectangle".
Vamos fazer um retângulo de 150 mm de Comprimento e 100 mm de altura.
01 - Clique no comando Draw.
02 - Na barra de comandos, o ProgeCAD exibirá a mensagem: <First corner
of rectangle>: que significa primeiro canto. Clique em qualquer lugar para
informar o primeiro canto para o retângulo.
03 - O Progecad exibirá: Other corner of rectangle:, que significa "outro
canto". Escreva: @150,100 e aperte <Enter> para informar as coordenadas
do retângulo a partir do primeiro ponto informado.
O retângulo está pronto.

18
3.4 - CIRCLE OU CÍRCULO
Clique no menu "Draw / Circle" ou escolha o botão correspondente na
barra de ferramentas de desenho.
Vamos fazer um círculo de 30 mm de raio.
01 - Clique no comando Circle.
02 - Na barra de comandos aparecerá: <Center of Circle>: Clique na tela para
informar o centro da circunferência.
03 - Na barra de comandos aparecerá: Diameter/<Radius>:
Obs.: Neste momento o ProgeCAD está pedindo o raio ou o diâmetro do
círculo. Observe que a palavra raio está entre os sinais <>. Isto quer dizer que
ProgeCAD está pronto para receber o raio da peça.
Se você quiser informar o diâmetro, você terá que digitar d (letra maiúscula da
palavra diameter) e apertar <Enter>. Assim o ProgeCAD aceitará o diâmetro.
04 - Digite 30 e aperte <Enter>. O círculo terá 30 mm de raio.

3.5 - CONSTRUCTION LINE (LINHA DE CONSTRUÇÃO)
Esta linha é infinita para os dois lados. É utilizada quando precisamos
de uma linha de referência cujo comprimento é ainda desconhecido ou
não importa no momento. Clique no menu "Draw / Construction line" ou
escolha o botão correspondente.
Vamos fazer uma linha na vertical como exemplo:
01 - Clique no comando Construction line.
02 - Na barra de comandos aparecerá: ...<Point along Line>. Clique no
primeiro ponto na sua tela.
Obs.: Verifique se a opção ORTHO da barra de Status está ligada. Se não
estiver, dê dois cliques sobre esta opção ou pressione a tecla <F8> do teclado
para ligá-la.
03 - Na barra de comandos aparecerá: Througth point: que significa - através
do ponto. Arraste o ponteiro do mouse para baixo ou para cima para fazer a
linha na vertical. Clique na tela para informar o próximo ponto.
04 - Na barra de comandos aparecerá: Througth point:. Aperte <Enter> para
terminar o comando.
Agora você tem uma linha infinita na vertical. Para apagá-la selecione-a com
um clique e aperte a tecla <Delete>.
19
3.6 - POLILINE OU POLILINHA
Realiza basicamente a mesma função da linha. A diferença é que as
linhas feitas com a polilinha estarão ligadas, ou seja, ao clicar em uma
linha, todas serão selecionadas.
Quando o desenho é feito com a linha, cada segmento se comporta como um
objeto separado. Para trabalhar com a polilinha escolha "Draw / Poliline" ou o
botão correspondente.
3.7 - POLYGON (POLÍGONO)
Constrói um polígono fechado com o número de lados que você quiser.
Para trabalhar com esta ferramenta, escolha "Draw / Polygon" ou clique
no botão correspondente.
Vamos construir um polígono.
01 - Clique no comando Polygon
02 - Na barra de comandos aparecerá: Number of Sides <4>. O ProgeCAD
quer saber o número de lados do polígono que você deseja fazer e diz que o
padrão é 4 lados.
03 - Digite 6 e aperte <Enter>.
04 - Na barra de comandos aparecerá: <Center of polygon>:. Clique na tela
para informar o centro do polígono.
05 - Na barra de comandos aparecerá:
<Side / Vertex>
Obs.: O ProgeCAD está perguntando se este polígono irá iniciar pelo Lado ou
Vértice, para isso basta clicar <Select Side point>: S e ele começará pelo lado
que implicará num polígono Circunscrito e para começar pelo vértice basta
clicar <Select Vertex point>: V isso implicará num polígono Inscrito.
06 - Na barra após escolher se o polígono será pelo Inscrito ou Circunscrito:
Informe o raio da circunferência onde o polígono ficará inscrito, digitando
qualquer valor como, por exemplo, digite 50 e aperte <Enter>.
O polígono está feito.

20
3.8 - ARC (ARCO)
Clique no desenho correspondente da barra de ferramentas "Draw". O
arco será feito por três pontos.
01 - Clique no comando Arc.
02 - Na barra de comandos aparecerá: <Start of Arc>:.
Clique no primeiro ponto para iniciar o arco.
03 - Na barra de comandos aparecerá: <Second point>:.
Informe o segundo ponto por onde o arco irá passar com um
clique.
04 - Na barra de comandos aparecerá: <End point>:.
Informe o último ponto para o arco com um clique.
O arco foi feito. Ele passa pelos três pontos onde você clicou.
Podemos fazer o arco de várias outras maneiras, escolhendo a opção "Draw /
Arc" do menu principal. Aparece uma para você escolher os três pontos do arco
que irá informar. Escolha a opção desejada.
Start = Início
End = Fim
Center = Centro
Angle = ângulo
Direction = Direção
Radius = Raio
Length = Comprimento
3.9 – ELIPSE
Podemos fazer uma elipse clicando em "Draw / Elipse" ou no desenho
correspondente. Para construí-la basta informar três pontos. Vamos
fazer um exercício
01 - Clique no comando Elipse
02 - Na barra de comandos aparecerá: <First end of ellipse axis>: O
ProgeCAD pede o primeiro ponto para fazer a elipse. Clique em um ponto da
tela.
03 - Na barra de comandos aparecerá: Second end of axis: O ProgeCAD
pede o segundo ponto para fazer a elipse. Digite @0,-100
e aperte <Enter>
para informar um ponto a 100 mm abaixo na vertical.

21
04 - Na barra de comandos aparecerá: <Rotation/<Other axis>:O ProgeCAD
pede o outro eixo para fazer a elipse. Digite @100,0 e aperte <Enter> para
informar o eixo. Veja na figura abaixo o primeiro, o segundo e o terceiro ponto
informados.
1
100

X

100

X3

X

2
3.10 - MULTILINE TEXT (TEXTO)
Para fazer os textos utilize esta ferramenta existente no menu "Draw /
Multiline text" ou utilize o botão correspondente. Vamos fazer um
exercício.
01 - Clique no comando Multiline text.
02 - Na barra de comandos aparecerá: First corner for block of text:
(especifique o primeiro canto). Clique em qualquer lugar na tela para informar o
primeiro canto para a caixa de texto.
03 - Na barra de comandos aparecerá: <Opposite corner for block of text>:
(especifique o canto oposto). Clique abaixo e à direita de onde você clicou para
formar a caixa de texto.
Aparecerá a tela abaixo para você digitar o texto.
Escolha a fonte, o tamanho e outros atributos. Escreva o texto e clique no
botão OK quando terminar. O texto aparecerá na tela.

22
3.11 – HACHURA
Antes de fazer a hachura, vamos construir o desenho representado no
retângulo abaixo.

01 - Clique no botão do comando Hachura.
Aparecerá a janela Boundary Hatch ou
Hachura e Gradiente
02 - Clique no desenho à frente de Amostra
para escolher o tipo de hachura que você
deseja.
03 - Depois de escolher o tipo de hachura,
clique em "Pick points" ou adicionar pontos de
seleção para selecionar a área onde a hachura
irá acontecer. Pressione <Enter>
04 - Clique no botão "Preview" ou vizualizar
para visualizar a hachura. No ProgeCAD,
pressione tecla ESC para continuar o trabalho.
Fique atento às mensagens da caixa de
comando
porque
há
diferenças
de
procedimento em outras versões.

Obs,: Na opção Scale existe o valor 1.000, que significa 1 . Esta é a escala da hachura. Se,
na visualização, você notou que a hachura está muito pequena, você deve aumentar este
valor. Ex.: 5 Se a hachura estiver muito exagerada, você deve diminuir este valor. Ex.: 0.2 .
05 - Ao final, depois de ter verificado a escala da hachura, clique em "OK" para aplicá-la ao
desenho.

23
3.12 - BLOCKS
Ao decorrer do tempo, notamos que alguns trabalhos poderão ser parecidos
com trabalhos que você já fez anteriormente. Às vezes você precisa de utilizar
uma peça ou um desenho que já utilizou em um outro arquivo. A criação de
blocos é uma boa idéia neste caso, se você trabalha com o CAD, uma vez que
ele não permite o trabalho com mais de um arquivo ao mesmo tempo. Assim,
você poderá montar o que chamamos de "Biblioteca" onde estarão os
desenhos que você acha que poderá utilizar em outros projetos. Estes
desenhos poderão ser guardados em forma de arquivos ou de blocos. Para
construir uma biblioteca em forma de arquivos, basta salvar o desenho com um
nome em uma determinada pasta. Sempre que desejar, poderá incluir este
desenho, já pronto, em seu arquivo, através do comando Insert Block, que
veremos a seguir. Podemos também criar um bloco interno, que será visto
somente pelo arquivo onde o bloco foi criado.
Vejamos um exemplo de criação de bloco interno:
3.12.1 - CRIANDO O BLOCO
1 - Faça o desenho abaixo com qualquer medida.

2 - Clique no
"Make block".

botão

3 - Aparecerá a janela Block
Definition.
4 - Na caixa "Block Name",
escreva Teste que será o nome
do bloco.
5 - Na caixa "Base Point"
podemos definir um ponto através
do qual o objeto será carregado
quando for inserido.
Clique no botão "Select Point" e logo depois clique no centro dos círculos.
(utilize os comandos de precisão).
6 - Clique em "Select Objects" e selecione os dois círculos. Aperte <Enter>.
7 - Clique em "Ok". Está criado o bloco Teste.
Obs.: Este bloco só estará habilitado para este arquivo. Outros arquivos não o
reconhecerão. Para que outros arquivos reconheçam o objeto, basta salvá-lo
com um nome em um diretório específico criado por você.
O AutoCAD 2000 permite que o usuário abra vários arquivos ao mesmo tempo.
Permite também que elementos de um arquivo sejam selecionados e copiados
para outro arquivo facilmente. Trabalhar deste modo é mais fácil do que utilizar
blocos.
24
3.12.2 - INSERINDO O BLOCO
1 - Clique no botão "Insert
block".
2 - Aparecerá a caixa "Insert".
3 - Clique no botão "Block" para
escolher o nome do bloco. Aparecerá
a janela "Defined blocks".
4 - Na janela "Defined blocks",
escolha o bloco Teste que foi gravado
anteriormente e dê "Ok" para voltar
para a janela "Insert".
5 - Clique em "Ok". O objeto aparecerá preso pelo cursor. Na barra de
comandos aparecerá: Intersetion point:
6 - Clique na tela para soltar o objeto. Na barra de comandos aparecerá: X
scale factor <1>:. O ProgeCAD quer saber qual é o fator de escala para o eixo
X.
7 - Aperte <Enter> para aceitar fator de escala 1. Na barra de comandos
aparecerá: Y scale factor <default=X>:. O ProgeCAD quer saber se o fator de
escala para o eixo Y será igual ao fator informado para o eixo X.
8 - Aperte <Enter> para aceitar fator de escala igual ao do eixo X. Na barra de
comandos aparecerá: Rotation angle <0>. O ProgeCAD quer saber se você
deseja informar um ângulo de rotação para a figura.
9 - Aperte <Enter> para aceitar o ângulo 0°. O bloco foi inserido.
Obs: Para inserir um bloco em forma de arquivo, clique no botão "File" da
janela "Insert block" e informe o diretório e o nome do arquivo e depois clique
na opção "Ok". Depois siga os passos de 5 a 9.

25
4 - COMANDOS DE PRECISÃO
O trabalho no ProgeCAD exige muita precisão. Não se pode clicar em um
ponto, como por exemplo o ponto final de uma linha ou o centro de um círculo,
simplesmente confiando em seu olho.
O botão ESNAP, mostrado no desenho abaixo, liga e desliga a atração a
pontos determinados de um objeto, auxiliando na construção do desenho.
Para Acessar a configuração de atração aos pontos do
objeto, clique com o botão direito do mouse na opção
ESNAP e escolha Settings (em inglês) ou Configurações
(em português).

Endpoint = ponto final de uma linha
Nearest =
ponto mais próximo
Perpendicular = ponto a 90º do outro
Quadrant = ponto que separa os
quadrantes de um círculo ou elipse
Intersection= interseção entre dois
objetos. Cruzamento entre duas
linhas.
Center =
ponto central de um
círculo ou arco
Midpoint = ponto do meio de uma
linha
Entre outros.

Se você clicar em "Endpoint" e depois em "OK" por exemplo, o seu cursor será
atraído para todos os pontos finais dos objetos da tela. Para isto basta
aproximar o seu cursor do objeto. Isto somente funcionará se você estiver
utilizando algum comando.
Para desabilitar ou habilitar a atração, basta apertar a tecla <F3> do teclado.
Pode-se ligar a atração do ponto de outra forma, apertando a tecla <shift> +
(Botão direito do mouse). Aparecerá uma janela com as opções: endpoint,
midpoint, etc.. Escolha a opção que desejar. Ao utilizar o SNAP por este
método, a atração funcionará somente uma vez, imediatamente depois da
escolha.
A atração ao ponto do meio de uma linha é muito útil, mas não vem ligada
como padrão no ProgeCAD. Você deve ligá-la manualmente.

26
4.1 - EXERCÍCIO
01 - Escolha "Tools / Object snap settings"
02 - Clique nas opções: endpoint, midpoint, center e intersection e clique em <ok>.
03 - Clique na ferramenta de retângulo e clique um ponto para iniciar o retângulo.
04 - Digite @100,-100 e aperte <Enter> para fazer um quadrado de 100x100mm.
05 - Clique na ferramenta de linha
06 - Aproxime do canto inferior esquerdo deste quadrado. Aparecerá um retângulo amarelo
indicando que a atração àquele ponto está ligada.
07 - Dê um clique para iniciar uma linha no canto inferior esquerdo do quadrado.
08 - Aproxime o cursor do canto superior direito do quadrado e dê um clique. A linha está feita.
Aperte <Enter> para terminar o trabalho com linhas.
09 - Clique na ferramenta de círculo.
10 - Aproxime o cursor do meio da linha que você criou. Aparecerá um sinal de midpoint. Dê
um clique para iniciar o círculo.
11 - Digite 50
quadrado.

e depois <Enter> para fazer um círculo de raio 50. Ele estará dentro do

O desenho ficará assim:

100

100

Exercício (Utilize os comandos de precisão)

R=60

R=60
R=40
R=20

27
5 - MENU MODIFY OU MODIFICAR
Este menu é utilizado para modificar figuras já prontas.
5.1 - ERASE (BORRACHA)
Utilizada para apagar objetos na tela. Selecione o(s) objeto(s) e clique
em "Modify / Erase" ou escolha o botão correspondente. Pode-se
também utilizar a tecla <Delete>. Tudo que estiver selecionado será
apagado.
5.2 - COPY (COPIAR)
Copia um objeto existente. Para acessar este comando, escolha "Modify
/ Copy" na barra de menu ou o desenho correspondente. Vamos
aprender fazendo um exemplo.
01 - Faça um círculo de raio igual a 50 mm.
02 - Clique no comando copy.
03 - Na barra de comandos aparecerá: Select entities to copy: Selecione o
círculo que você fez, clicando em sua linha. Aperte <Enter> para confirmar a
seleção.
04 - Na barra de comandos aparecerá: Vector/mode/<Base point>:
Clique em um ponto na tela por onde você irá carregar a cópia do objeto.
05 - Na barra de comandos aparecerá: Displacement point: Arraste o mouse
e clique em um ponto para deixar a cópia do objeto na tela. Podem ser usadas
coordenadas para deixar o objeto em um lugar específico da tela.
5.3 - MIRROR (ESPELHO)
Espelha um objeto na tela. Para acessar este comando, escolha
"Modify / Mirror" ou o desenho correspondente. Vamos aprender a
utilizar o comando fazendo um exercício.
01 - Faça um desenho de qualquer medida, parecido com o desenho abaixo:

02 - Escolha o comando mirror.

28
03 - Na barra de comandos aparecerá: Select entities to mirror: Faça uma
janela para selecionar os dois objetos que você desenhou. Depois aperte
<Enter>.
04 - Na barra de comandos aparecerá: Start of mirror line: Clique no ponto 1
indicado na figura abaixo.
05 - verifique se o botão ORTHO da barra de status está ligado. Se não estiver
dê dois cliques nele ou aperte a tecla <F8> para ativá-lo.
06 - Na barra de comandos aparecerá: End of mirror line: Clique no segundo
ponto (como mostra a figura) para terminar de construir o espelho.

x1
x2

07 - Na barra de comandos aparecerá: Delete the original entities? <N>?.
(deletar o desenho antigo?) Responda esta pergunta com Y para sim ou N para
não. Se responder não, você terá o objeto e sua imagem espelhada. Se
responder sim, você terá somente a imagem. Digite N e <Enter>.
O objeto ficará como este:

5.4 – OFFSET OU COPAR
Este comando é utilizado para rebater (copiar) linhas paralelamente a
uma certa distância. Para trabalhar com ele, basta clicar em "Modify /
Offset" ou o botão correspondente.
Vamos fazer um exemplo.
01 - Faça uma linha na vertical
02 - Escolha o comando Offset.
03 - Na barra de comandos aparecerá: ENTER for Through
point/<Distance>:. O ProgeCAD está pedindo a distância que ele terá que
colocar uma linha da outra. Digite 10 para rebater a linha a 10mm e aperte
<Enter>.
29
04 - Na barra de comandos aparecerá: Select entity: Selecione a linha com
um clique para dar o offset.
05 - Na barra de comandos aparecerá: <Side for parallel copy>: Clique no
lado direito para que a linha saia a 10 mm deste lado (esta operação também
funciona quando clicamos no lado esquerdo do objeto selecionado).
06 - O ProgeCAD continuará pedindo para que você selecione o objeto
novamente. Se você quiser continuar com o comando offset, repita os passos 4
e 5 quantas fezes for preciso. Caso não queira mais trabalhar com o comando,
aperte <Enter> ou <Esc>.
Seu exercício ficará parecido com o desenho mostrado abaixo.

5.5 - ARRAY RETANGULAR OU MATRIZ RETANGULAR
Este comando é utilizado para rebater objetos em posições definidas
por você. Pode ser de dois tipos. O Array Retangular dispõe os objetos
copiados em linhas e colunas, de maneira que sua posição forme um
retângulo. O Array Polar dispõe os objetos copiados em forma circular. Para
trabalhar como Array, clique em "Modify / Array" ou no botão correspondente.

Vamos fazer um exemplo de Array Retangular.
01 - Clique na ferramenta de retângulo.
02 - Na barra de comandos aparecerá:
<Select first corner of rectangle>:.
Clique na tela para informar o primeiro
ponto para o retângulo.
03 - Na barra de comandos aparecerá:
Other corner of rectangle or
[Dimension/Area]:.
O
ProgeCAD
pede o canto oposto do retângulo.
Digite @15,15 e aperte <Enter> para
fazer o retângulo.
04 - Clique na ferramenta Array. Aparecerá a caixa de comando do Array,
clique em: Object selected:

30
05 – Após clicar selecione o objeto e aperte <Enter>. Isso levará para a caixa
de comando do Array novamente.
06 - Na barra de comandos aparecerá: Retangular or Polar array:. O
ProgeCAD pergunta se você quer fazer um Array retangular ou polar. Clique
e aperte <Enter> para informar que você fará array
retangular.
07 - Na barra de comandos aparecerá: Rows:.
O ProgeCAD pede o número de linhas. Digite 4 e aperte <Enter> para informar
que você utilizará 4 linhas com cópias.
08 - Na barra de comandos aparecerá: Coluns:
(número de colunas). Digite 6 e aperte <Enter> para informar ao AutoCAD
que você fará 6 colunas de cópias.
09 - Na barra de comandos aparecerá: Distance Rows: (distância entre
linhas). Digite -25 e aperte <Enter> para que o objeto seja repetido para baixo
em uma distância de 25 mm. Para repetir o objeto para cima, informe um valor
positivo.
10 - Na barra de comandos aparecerá: Distance Columns: (distância entre
colunas). Digite 25 e aperte <Enter> para que o objeto seja repetido para a
direita em uma distância de 25 mm. Para repetir o objeto para a esquerda,
informe um valor negativo.
Será feita uma matriz de 4 linhas e 6 colunas com o objeto que em nosso caso
é o quadrado. O desenho ficará parecido com o desenho abaixo.
25mm

15mm

25mm

15mm

31
5.6 - ARRAY POLAR OU MATRIZ POLAR
Vamos fazer um exemplo de Array Polar.
01 - Clique na ferramenta de círculo.
02 - Na barra de comandos aparecerá: <Center of Circle>: Clique na tela para
informar o centro de seu círculo.
03 - Na barra de comandos aparecerá: Diameter <Radius>: O ProgeCAD pede o
diâmetro ou o raio para o círculo e diz que o padrão é o diâmetro (ele está entre
sinal de menor e maior). Digite 30 e aperte <Enter> para fazer um círculo de raio
30mm.
04 - Faça um retângulo de qualquer medida em cima do círculo de maneira que
seu desenho fique parecido com o desenho da figura abaixo.

05 - Clique na ferramenta Array. Na barra de comandos aparecerá: Select
Objects:. Clique no retângulo para selecioná-lo e aperte <Enter>.
06 - Na barra de comandos aparecerá: Retangular or Polar array: O
ProgeCAD pergunta se você quer fazer um Array retangular ou polar. Clique
e aperte <Enter> para informar que você fará array
polar.
07 - Na barra de comandos aparecerá: Center point of array:. O ProgeCAD
pede o centro onde o retângulo irá rodar. Escolha o comando de precisão
center para pegar o centro do círculo (através da tecla F3 ou apertando <Shift>
e depois <Enter>) e clique no centro do círculo.
08 - Na barra de comandos aparecerá: Number of elements: (número de
elementos). Digite 6 e aperte <Enter> para informar ao ProgeCAD que você
fará 6 objetos repetidos.
09 - Na barra de comandos aparecerá: Total Angle <360>: (O objeto será
preenchido em 360 graus). Aperte <Enter>
10 - Na barra de comandos aparecerá: Rotate object: (Rodar o objeto quando
ele for copiado?). Marque essa opção para informar que sim e aperte <Enter>. O
retângulo será repetido 6 vezes em uma circunferência imaginária de centro
igual ao centro do círculo.
32
O seu desenho ficará parecido com o desenho abaixo.

5.7 - MOVE (MOVER)
Este comando move objetos de um lugar para o outro. Escolha "Modify /
Move" ou o botão correspondente.
Para testar este comando você deve ter um ou mais objetos na tela.
01 - Clique no comando Move.
02 - Na barra de comandos aparecerá: Select entities to move: Selecionar
a(s) entidades(s) para Mover e aperte <Enter> para confirmar a seleção.
03 - Na barra de comandos aparecerá: Vector/<Base point>: O ProgeCAD
pede que você clique em um ponto através do qual o objeto selecionado será
carregado. Clique em um ponto. O desenho irá mover-se com o mouse.
04 - Na barra de comandos aparecerá: Displacement point: Clique no ponto
para deixar a figura, ou informe o local onde ela ficará através de coordenadas.
Pronto. A figura já está em outro lugar.
5.8 - ROTATE (RODAR)
Este comando roda objetos na tela. Escolha "Modify / Rotate" ou o
botão correspondente.
Para testar este comando você deve ter um ou mais objetos na tela.
01 - Clique no comando Rotate.
02 – Selecione o objeto que deseja rodar e pressione a tecla <Enter>.
03 - Na barra de comandos aparecerá: Rotation point: Clique em um ponto
para indicar a base (o eixo) da rotação.
04 - Na barra de comandos aparecerá: Base angle/<Rotation angle>: O
ProgeCAD pede que você digite o ângulo de rotação. Informe um valor positivo
para o sentido contrário ao sentido do ponteiro do relógio. Digite o ângulo e
aperte <Enter>.
O objeto será rodado de acordo com o ângulo que você informou e com base
no ponto que você indicou.
33
5.9 - SCALE (ESCALA)
Para aumentar ou diminuir um objeto, utilizamos o comando Scale.
Escolha "Modify / Scale" ou o botão correspondente.
Para testar este comando você deve ter um ou mais objetos na tela.
01 - Faça um quadrado de (20 x 20) mm.
02 – Clique neste objeto para selecioná-lo.
03 - Clique no comando Scale. Na barra de comandos aparecerá: Base point:
Clique em um ponto que o ProgeCAD irá tomar como base para realizar o
comando. Por exemplo, canto superior direito da figura.
04 - Na barra de comandos aparecerá: Scale factor: O ProgeCAD pede que
você digite o fator para escala. Se você digitar 2 e apertar <Enter>, o objeto
será duplicado. Se você digitar 1/2 e apertar <Enter>, o objeto será reduzido à
metade.

05 - Digite o 2 e aperte <Enter>.
O objeto ficará com o dobro do tamanho (40 x 40) mmm.
5.10 – TRIM
Este comando é utilizado para aparar linhas. Escolha "Modify / Trim" ou
o botão correspondente.
Para testar este comando você deve construir o desenho abaixo.

01 - Clique no comando Trim.
02 - Na barra de comandos aparecerá: <ENTER to select all>: Selecione o
objeto todo e aperte <Enter> para confirmar a seleção.
03 - Na barra de comandos aparecerá: <Select entity to trim>: O ProgeCAD
pede que você clique nas linhas que você que excluir. Clique nas sobras
(pontas) das linhas. Elas sumirão. Ao final, aperte <Enter> para sair do
comando.
34
O objeto ficará como o objeto abaixo.

5.11 - EXTEND (ESTENDER)
Este comando estende uma linha até um pondo de outra linha. Escolha
"Modify / Extend" ou o botão correspondente.
Para testar este comando vamos utilizar o exercício que fizemos anteriormente.
Faça uma linha horizontal acima do desenho.

Vamos estender todas as linhas verticais até a linha horizontal.
01 - Clique no comando Extend.
02 - Na barra de comandos aparecerá: <ENTER to select all>: Selecione a
linha horizontal acima do objeto, que é o lugar onde as linhas verticais irão
parar. Aperte <Enter>.
03 - Na barra de comandos aparecerá: <Select entity to extend>: . (Selecione
os objetos para estender). Clique em cada uma das linhas verticais e elas se
estenderão até a linha horizontal acima do desenho.

35
5.12 - CHANFER (CHANFRO)
Realiza chanfro em duas linhas. Escolha "Modify / Chanfer" ou o botão
correspondente.
Para testar este comando vamos fazer um quadrado.
01 - Faça um quadrado de lado 60. Clique na ferramenta retângulo, clique em
um ponto na tela e digite: @60,-60 . Aperte <Enter>.
02 - Clique no comando chanfer.
Na barra de comandos aparecerá:
Chamfer (dist1=0, dist2=0):
Distance/Settings/Polyline/<Select first entity>: (Selecione a primeira linha).
O ProgeCAD está dizendo que você estará fazendo o chanfro informando duas
distâncias (dist1 e dist2) e que todas as duas são 10 mm. Se você clicar em
uma linha e depois clicar na outra, o Progecad fará um chanfro de 10 mm em
cada linha que você clicou.
03 - Para mudar a distância do chanfro, digite a letra "D" de Distance e aperte
<Enter>.
04 - Na barra de comandos aparecerá: Chamfer distance on first entity <0>: .
Informe a primeira distância para o chanfro. Digite
30 e aperte <Enter>.
05 - Na barra de comandos aparecerá: Chamfer distance on second entity
<30>: Informe a segunda distância para o chanfro. Digite 30 e aperte <Enter>.
06 - Na barra de comandos aparecerá: <Select first entity>: O ProgeCAD está
pedindo que você selecione as entidades.

07 - Clique na primeira linha e depois na segunda linha (indicadas com um X
no desenho abaixo e à esquerda).
Quadrado sem chanfro.
X

X

36
Quadrado com chanfro. Resultado final.

5.13 – FILLET
Arredonda cantos ou quinas formados por duas linhas. Escolha "Modify /
Fillet" ou o botão correspondente.
Para testar este comando vamos fazer um quadrado.
01 - Faça um quadrado de lado 60. Clique na ferramenta retângulo, clique em
um ponto na tela e digite: @60,-60 . Aperte <Enter>.
02 - Clique no comando Fillet.
03 - Na barra de comandos aparecerá:
Fillet (radius=0):
Radius/Settings/Polyline/<Select first entity>: O ProgeCAD diz que o raio do
fillet é de tamanho padrão 0mm.
04 - Digite "R" de Radius para trocar o raio do fillet e aperte <Enter>.
05 - Na barra de comandos aparecerá: Fillet radius <0>: Digite 30
<Enter>.

e aperte

07 - clique nos dois lados para formar o fillet, na barra de comandos aparecerá:
Directional/Select second entity: Solicitando que você clique na outra
direção.
O objeto ficará parecido com o objeto mostrado abaixo.

37
5.14 – EXPLODE
Quando desenhamos um quadrado, retângulo ou um polígono que é
feito com polilinha, as linhas ficam agrupadas. Elas não se comportam
como objetos separados. Às vezes, isto atrapalha o desenho. Assim, temos
que explodir estas figuras para trabalharmos com cada linha em separado.
Para isto, utilizamos a ferramenta Explode. Para trabalhar com o Explode,
escolha "Modify / Explode" ou o botão correspondente.
Para testar este comando vamos fazer um quadrado.
01 - Faça um quadrado de lado 80. Clique na ferramenta retângulo, clique em
um ponto na tela e digite: @80,-80 . Aperte <Enter>.
02 - Clique neste quadrado. Observe que todas as linhas são selecionadas.
03 - Clique no comando Explode. E todas as linhas já se tornam independentes
umas das outras.
04 - Clique novamente no quadrado e você verá que as linhas podem ser
selecionadas separadamente.

38
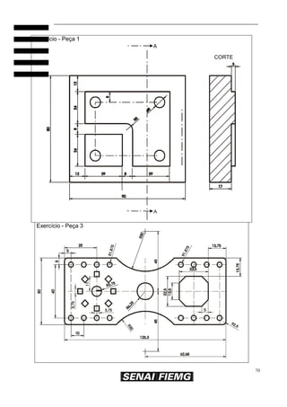
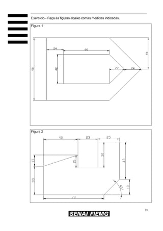
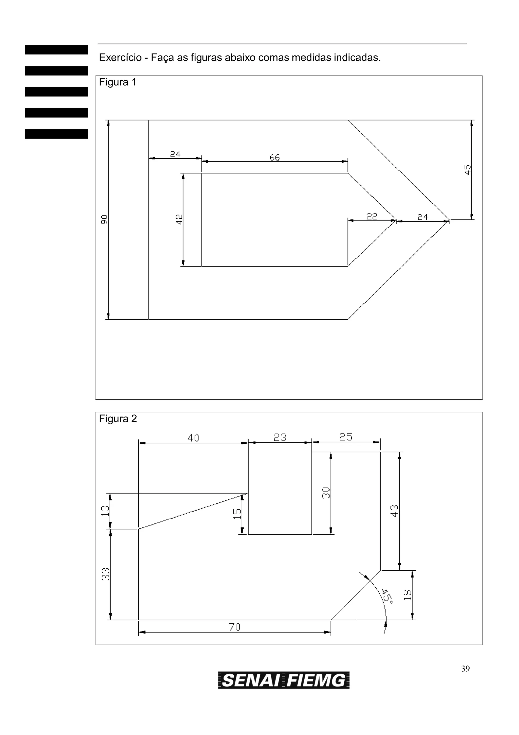
Exercício - Faça as figuras abaixo comas medidas indicadas.
Figura 1

Figura 2

39
Figura 3
20

30

5

30

30

20

50

30

5

60º
11,5

6 – DIMENSIONANDO O DESENHO
A barra de ferramentas de dimensão não aparece
como padrão quando o ProgeCAD é instalado.
Para fazer com que a barra de dimensionamento
seja mostrada, clique na opção “View” ou visualizar
que fica na barra de menus e depois clique em
“Toolbars” ou barras de ferramentas. Clique na
opção “Dimension”. Quando a barra de ferramentas
dimension aparecer, Arraste-a para o lugar
desejado. A dimensão também pode ser chamada
de COTA. Para realizar o dimensionamento em um
trabalho temos que utilizar as opções do menu
dimension da barra de menus ou utilizar a barra de ferramentas dimension.
Para utilizar a barra dimension, clique em "View / toolbars" e clique no
quadrado da palavra "Dimension", para que a barra apareça. Arraste esta barra
para o lugar que você desejar.
Deste ponto em diante você precisará utilizar os comandos de precisão.
Qualquer dúvida, veja as anotações anteriores que falam sobre este assunto.
6.1 - LINEAR DIMENSION (DIMENSÃO LINEAR)
Mostra a dimensão de uma linha vertical ou horizontal. Escolha
"Dimension / Linear" ou o botão correspondente. Para testar este
comando vamos fazer um quadrado. Você precisará utilizar os comandos de
precisão. Aperte a tecla <F3> para configurar os comandos de precisão. Clique
nos quadrados: Endpoint, Midpoint, Center e Intersection, para que o cursor
seja atraído para estes pontos e clique em <Ok>.
01 - Faça um quadrado de lado 30. Clique na ferramenta retângulo, clique em
um ponto na tela e digite: @30,-30 . Aperte <Enter>.
02 - Clique no comando "Linear dimension".
40
30

Na barra de comandos aparecerá: ENTER to select entity/<Origin of first
extension line>: O ProgeCAD pede para você clicar em um ponto para iniciar
a medição.
03 - Aproxime o cursor da quina do quadrado. Aparecerá a marca de precisão
(Endpoint). Clique nesta quina.
Na barra de comandos aparecerá: Origin of second extension line:. Segundo
ponto da medição.
04 - Aproxime-se da segunda quina. Aparecerá a marca de precisão
(Endpoint). Clique neste segundo ponto.
Na barra de comandos aparecerá: Orientation of dimension line:. Você terá
que informar a posição onde a linha com a medida vai ficar.
05 - Arraste o cursor e clique em um ponto para deixar a linha com a medida
naquela posição.

O número 30 é a anotação da cota. A linha da cota possui duas setas nas
extremidades. As linhas horizontais são as linhas de chamada da cota.
6.2 – ALTERANDO A DIMENSÃO NO PROGECAD
Quando escolhemos a opção “Format / Dimension Style” no ProgeCAD,
aparece a janela do gerenciador de estilo de dimensão.

41
No ProgeCAD, sempre que você realiza uma modificação, ela se reflete em
todo o desenho. Clicando no botão “Dimension Style” você pode realizar
alterações do estilo da dimensão, assim que a janela aparecer clique no botão
<New> aparecerá <New Dimension style> e crie um nome para seu padrão
de dimensão.

42
6.2.1 – LINES (LINHAS DE COTA)
20

20

20

Na aba Lines (linha de dimensão) você encontrará as opções:
Center Mark size: altera a dimensão da marcação do ponto de
centro de curvas.
Offset from
Baseline: define a distância entre uma linha de cota e outra.
Origin: define um espaço entre o desenho e o início da linha de
extensão.
Extend Lines Past
Dimensions : especifica o quanto a linha de extensão irá ultrapassar
à linha da cota.
Dimensions Lines
Linweight: troca a espessura da linha de dimensão.
Select color: troca a cor da linha de dimensão.
Extensions Lines
Linweight: modifica a espessura da linha de extensão.
Select color: modifica a cor da linha de extensão.
Supress outside dimension lines: esconde a primeira ou a segunda
metade da linha se for preciso.
43
C

20

Linha de extensão

D

6.2.2 – ARROWS OU PONTA DA SETA
Agora estamos na guia de nome Símbolos e setas.
Define o tamanho e a forma das pontas da linha de dimensão.
20

20

A opção mais importante utilizada desta guia é:

Todas as vezes que desejar trocar especificações das cotas, o usuário deverá
alterar este valor, de forma proporcional aos valores mencionados na guia de
Linhas, esta guia altera os tamanhos dos símbolos utilizados (SETA).

44
6.2.3 – TEXT OU TEXTO

As opções mais importantes desta guia de texto são:
Altura de texto e Deslocar a partir da linha de cota (marcadas acima)
Opções que devemos trocar para alterar as cotas:

Guia de Linhas:
Extender além das linhas de cota (extend beyond dimension lines).
Deslocar da origem (offset from origin).
Guia de Símbolos e setas
Tamanho da seta (arrow size).
Guia de texto:
Altura de texto (text height).
Deslocar a partir da linha de cota (offset from dim lines).
Ao terminar de escolher a configuração ideal, clique no botão “Ok”. Você
voltará à tela “Dimension style manager”. Clique no botão “Close” desta tela.
Todas as configurações de cota serão trocadas automaticamente.

45
7 – LAYERS OU CAMADAS

Layers são camadas criadas para facilitar a organização dos trabalhos no
ProgeCAD. Todo trabalho realizado no ProgeCAD é feito pelo menos em uma
layer que é a "layer 0" (Zero).
Ao criarmos outras camadas, estaremos simulando o trabalho com papéis
transparentes que serão sobrepostos para formar o desenho. A idéia é criar
várias camadas para contorno, preenchimento, hachura, cota, etc. Dependendo
do tipo de trabalho, o usuário poderá criar nomes diferentes para as camadas,
como por exemplo: parede, esquema elétrico, portas e janelas, esquema
hidráulico, máquinas, área de risco e outros.
Trabalharemos com contorno somente na camada de contorno. Uma layer
pode ser desabilitada para visualização ou pode ser travada para que não se
possa mexer nela.
Obs.: Antes de iniciar este exercício, crie um novo arquivo e salve com o
nome de Padrão. Este arquivo irá conter sempre as layers que você vai
precisar para realizar seus trabalhos.
Criaremos as layers a seguir
Nome
Contorno
Contorno não visível
Cota
Hachura
Texto
Centro
Corte

Cor
Azul claro (cyan)
Azul escuro
Vermelho
Rosa
Branco
Verde
Amarelo

Tipo de linha
Contínua
Tracejada
Contínua
Contínua
Contínua
Traço-ponto
Traço-ponto

Espessura
0.4000 mm
0.1000 mm
0.0500 mm
0.1000 mm
0.4500 mm
0.0500 mm
0.3000 mm

46
Vamos criar nossas layers para realizar os trabalhos daqui em diante.
01 - Clique no botão Layers ou Camadas. Aparecerá a janela Layer &
linetype properties ou Gerenciador de propriedade de camadas.

02 - Clique no botão "New" ou novo para criar uma nova layer.
Aparecerá o nome "layer1". Escreva "Contorno" e pressione
<ENTER>. Clique no quadrado que indica cor da camada e escolha a
cor azul claro (da caixa Standard Color) e depois escolha "Ok". A palavra
continuous indica que esta linha será contínua. Está criada a layer de
"Contorno".
03 - Clique novamente botão "New". Aparecerá o nome "layer1". Escreva
"ContornoNaoVisivel" e pressione <ENTER>. Clique no quadrado de cores e
escolha a cor azul escuro e depois clique em "Ok".
Clique na palavra Continuous. Aparecerá a janela para escolher tipos de linhas.
Só existe a linha contínua. Temos que carregar a linha tracejada.
Clique no botão "Load" ou Carregar e clique na primeira linha tracejada (Ex.:
Acad_iso02w100). Clique em "Ok". Clique na linha tracejada. Clique em "Ok".
Está criada a layer de Contorno não visível.
04 - Clique no botão "New" ou Novo. Aparecerá o nome "layer1". Escreva "Cota".
Clique no quadrado de cores e escolha a cor vermelha e depois clique em "Ok".
A palavra continuous indica que esta linha será contínua. Está criada a layer de
"Cota".
05 - Clique no botão "New" ou Novo. Aparecerá o nome "layer1". Escreva
"Hachura". Clique no quadrado de cores (depois do cadeado) e escolha a cor
"rosa" e depois clique em "Ok". A palavra continuous indica que esta linha será
contínua. Está criada a layer de "hachura".
47
06 - Clique no botão "New" ou Novo. Aparecerá o nome "layer1". Escreva "Texto".
Clique no quadrado de cores e escolha a cor branca e depois clique em "Ok". A
palavra continuous indica que esta linha será contínua. Está criada a layer de
"Texto".
07 - Clique no botão "New" ou Novo. Aparecerá o nome "layer1". Escreva
"Centro". Clique no quadrado de cores e escolha a cor verde e depois clique em
"Ok". Clique na palavra Continuous. Temos que carregar a linha Traço-Ponto.
Clique na primeira linha Traço-ponto que encontrar (Ex.: Acad_iso04w100). Clique
em "Ok". Clique novamente na linha Traço-ponto para selecioná-la. Clique
novamente em "Ok". Está criada a layer de Centro.
08 - Clique no botão "New". Aparecerá o nome "layer1". Escreva "Corte". Clique
no quadrado de cores (depois do cadeado) e escolha a cor amarela e depois
clique em "Ok". Clique na palavra Continuous. Clique na linha traço-ponto para
escolhê-la. Clique em "Ok". Está criada a layer de Corte.
09 - Clique em Ok na janela de "Layer & Linetype properties"
10 - Salve o arquivo.
Ao final, a janela ficará como o desenho abaixo:

Obs.: Ao criar um arquivo novo, todo este procedimento terá que ser feito novamente
porque o arquivo novo só possui a layer 0 (zero). Por isto criamos o arquivo padrão.

Este é apenas um exemplo. Crie quantas camadas precisar com o nome que lhe
for mais conveniente.
A camada de nome DEFPOINT será criada pelo ProgeCAD automaticamente.
Todos os objetos colocados nesta camada, não serão impressos.

48
7.1 - EXERCÍCIO DE UTILIZAÇÃO DE LAYERS
01 - Abra a página padrão (se ela não estiver aberta).
02 - Salve como Exercicio layers.

03 - Clique na caixa "Layer Control" (Desenho acima) e clique na layer de
"Contorno".
04 - Desenhe um círculo de raio 40. O círculo ficará da cor azul e linha contínua.
05 - Clique na caixa "Layer Control" e clique na layer de "Cota".
06 - Clique no botão radius dimension para medir o círculo.
07 - Clique na linha do círculo. Aparecerá a medida do raio com a linha contínua e
vermelha.
08 - Clique novamente na caixa "Layer Control".
09 - Clique no desenho da lâmpada do Contorno. A lâmpada irá se apagar
indicando que o contorno não poderá ser visto nem impresso.
Vamos habilitar novamente o contorno.
10 - Clique na caixa "Layer Control".
11 - Clique no desenho da lâmpada do Contorno. A lâmpada irá se ascender
indicando que o contorno poderá ser visto e impresso novamente.

7.2 - EXERCÍCIO - FIGURAS
Faça as figuras abaixo
Figura 1

Figura 2

49
Figura 3

Figura 4

Figura 5

50
8 - ESCALA
Muitas vezes precisamos aumentar ou diminuir o desenho, utilizando uma
escala definida.
Quando aumentamos o desenho 10 vezes para que ele seja melhor
visualizado, ele está em escala 10:1, ou seja, cada 10 unidades do desenho
equivale a 1 unidade do tamanho real.
Quando diminuímos o desenho 100 vezes, por exemplo, para que ele caiba no
papel, dizemos que ele está em escala 1:100. Cada 1 unidade do desenho
equivale a 100 unidades do tamanho real.
Vamos ver o exemplo a seguir.
Exercício de Escala
1 - Desenhe um círculo de raio 35 mm.
2 - Você terá que cotar este círculo. Ele ficará assim:

35

3 - Clique no botão "Scale". Na barra de comandos aparecerá: Select
entities to scale:. O ProgeCAD pede para você selecionar os objetos
para a escala.
4 - Selecione todo o círculo juntamente com a medida e pressione <Enter>. Na
barra de comandos aparecerá: Base point:. O ProgeCAD pede o ponto que
usará como base para aumentar o objeto.
5 - Clique no centro do círculo. Na barra de comandos aparecerá: <Scale
fator> / Reference:. O ProgeCAD pede o fator de ampliação ou de redução.
Obs: para aumentar 10 vezes é preciso informar o valor 10. Para diminuir 10
vezes é preciso informar o valor 1/10.
6 - Digite 2 e aperte <Enter> para aumentar o desenho duas vezes. O desenho
terá o dobro do tamanho.
8.1 - PROBLEMA COM A ESCALA NO PROGECAD
Se uma escala for aplicada a um desenho já cotado poderemos ter problemas.
Quando o círculo aumentou 2 vezes, a medida (35mm) também aumentou 2
vezes (70mm). Isto é errado. Para que a medida continue 35mm, mesmo
depois de termos dobrado o desenho, temos que fazer a operação a seguir.

51
Se você aplicou uma escala de ampliação e dobrou o seu desenho
propriamente dito (na aba MODEL), as cotas do desenho também serão
dobradas.
Para fazer com que as cotas mostrem a metade do valor que estão mostrando
siga os passos abaixo.
1 – escolha a opção “Format / Dimension Style” na barra de menus do
ProgeCAD. Aparecerá a janela “Dimension style manager”.
2 – Clique na aba de nome “Units”. Aparecerá a janela abaixo:

4 – Observe a caixa “Scaling”. O valor da caixa de nome “Liner diemnsioning
scale factor” é 1. Para fazer com que as cotas mostrem a metade do valor que
estão mostrando, escreva o valor 1/2 nesta caixa.
Obs.: Você sempre aplica o valor inverso da escala que você aplicou ao
desenho. Se você ampliou o desenho 100 vezes, você terá que colocar o valor
1/100 na caixa “Liner diemnsioning scale factor”.

52
9 – IMPRIMINDO UM ARQUIVO NO PROGECAD.
O trabalho de impressão é um pouco complicado, mas se você seguir as
instruções passo a passo, como uma receita de bolo, o processo todo torna-se
automático.
Toda peça é construída na Guia de nome MODEL mostrada na parte inferior
esquerda da janela do ProgeCAD. Veja o desenho abaixo.

Para realizarmos a impressão, é preciso que se tenha algum desenho feito na
tela. Vamos utilizar o desenho abaixo como exemplo. O desenho é apenas
ilustrativo.

9.1 – CONFIGURANDO A PÁGINA DE IMPRESSÃO
Na guia Layout1 você poderá montar a sua página
de impressão. Esta página pode ter o tamanho A4,
A3, A2, A1 ou A0. Você define o tamanho da página. O mesmo acontece na
guia Layout2. Sendo assim, você poderá ter formatos diferentes de página para
imprimir o mesmo desenho.
No ProgeCAD 2010, ao clicar em uma guia pela primeira vez, uma página é
criada sem que você possa escolher qual é o formato. Normalmente ela vem
com o formato A4. Para modificar o formato da página, clique <File> na guia
escolha a opção “Print setup”.

53
9.2 – GERENCIADOR DE IMPRESSÃO DE PÁGINA
Vamos entender as configurações da guia Layout1
1 – Clique na guia Layout1. Aparecerá a janela de nome Page Setup manager
ou Gerenciador de configuração de página.

Na parte inferior esquerda desta janela existe a opção “Exibir ao criar novo
layout. Se esta opção estive marcada, esta janela sempre aparecerá quando
você clicar na guia Layout pela primeira vez.
Clique no botão “modificar” para escolher as configurações da página a ser
criada.
Aparecerá a janela de configuração de página mostrada a seguir.

54
9.3 – CONFIGURAÇÃO DE PÁGINA.

1 – O ProgeCAD condensa todas as informações sobre configuração de
página e impressão em uma única tela.
2 – A opção “Printer” mostra o nome da impressora sua impressora. Somente
um trabalho desenvolvido em uma folha tamanho A4 poderá ser impresso em
uma impressora do formato A4 (210 x 297) mm. Qualquer formato maior que
este (A3, A2, A1 ou A0) deverá ser impresso em impressoras maiores em
locais especializados neste tipo de serviço. Se precisar de configurar sua
impressora, clique no botão “Propriedades”.
3 – A opção “Paper” (ou papel), mostra o tamanho que terá sua página de
impressão. Clique na seta e escolha o formato desejado. Se você não possui
impressora ou possui somente uma impressora A4, mesmo assim poderá
realizar trabalhos maiores e enviar para impressão em outro local.
Já sabemos que, ao final do processo de configuração de página, o ProgeCAD
dará uma página em branco contendo todo o seu desenho em escala
desconhecida.
A segunda maneira de se preparar a impressão é montar todo o trabalho de
impressão (limites da página, margens legenda e desenhos) fora desta página
criada pelo programa.
55
Com esta forma de trabalho, utilizamos somente um Layout, desprezamos a
página de impressão criada pelo ProgeCAD e criamos outras páginas fora da
área de impressão que serão escolhidas pelo botão “janela”. Veja um exemplo:
se você precisar de criar 10 páginas para imprimir o desenho, você poderá
trabalhar com apenas um layout e dentro deste layout você cria 10 cópias de
uma página A4, já preparada com suas margens e com sua legenda. Dentro
destas páginas você poderá inserir as partes do desenho a ser impresso,
identificando cada desenho na sua legenda correspondente.
4 – Na caixa “Scale/View” verifique se a escala exibida é 1:1 . Sempre
utilizaremos esta opção 1:1. Isto indica que a página montada será impressa do
tamanho que foi montada. Nem menor nem maior.
No próximo passo, iremos configurar com que cor e espessura serão
impressas as linhas que estamos utilizando no nosso desenho.
9.4 – APLICANDO UMA ESCALA AO DESENHO PARA IMPRESSÃO
Ainda temos um problema. Apesar de o ProjeCAD já apresentar uma visão do
desenho para você, não sabemos qual é a escala aplicada a esta visualização.
Verifique a barra de Status. Ela deve estar mostrando o botão “M:Layout2”.
Clique neste botão para trocá-lo para “P:Layout2” (como indica a figura abaixo).

2 – Digite Z e pressione <Enter>. (digitando Z você acionará o comando Zoom).
3 – Neste caso, a escala será aplicada não no desenho, mas sim na visão do
desenho. O tamanho do desenho que você fez não altera. O que altera é o
tamanho da sua visualização. Lembrem-se de que nós não estamos
trabalhando na guia Model. Estamos trabalhando na guia de nome Layout.
4 – Neste momento, você já deve saber qual é a escala que você deseja
aplicar ao desenho. Digite o valor da escala seguido das letras XP, tudo
sem espaço e pressione <Enter>. Veja o quadro abaixo
Escala
Natural
Ampliação
Ampliação
Redução

Fator
Digite
O desenho da visão ficará
Mesmo tamanho
Do tamanho que foi criado na guia
do desenho
1XP Model.
Duas vezes maior 2XP Com o dobro do tamanho que foi
criado na guia Model.
Dez vezes maior 10XP Dez vezes maior do que o
desenho criado na guia Model.
Dez vezes menor 1/10XP Dez vezes menor do que o
desenho criado na guia Model.
56
Redução
Redução

Quinze vezes
1/15XP Quinze vezes menor do que o
menor
desenho criado na guia Model.
Cinquenta vezes 1/50XP Cinquenta vezes menor do que o
menor
desenho criado na guia Model.

A letra X significa “vezes”. Ex: 1x significa uma vez. 2x significa duas vezes.
A letra P obriga o AutoCAD a pegar o tamanho do desenho construído lá na
guia Model.
Portanto, 1/10XP para o ProjeCAD significa que ele tem que mostrar (na visão
que você está trabalhando) o desenho dez vezes menor com relação ao
desenho que você fez lá na guia Model.
Como já foi dito, você deve calcular o quanto o desenho deve diminuir ou
aumentar para que ele caiba dentro da visão que você está criando.

57
9.5 - ALTERANDO O TAMANHO DA CAIXA DA VISÃO
No desenho acima temos muito espaço perdido na página. Para diminuir o
espaço da caixa da visão, siga os passos abaixo.
1 – Na barra de status não pode estar sendo exibido o botão “MODEL”. Se isto
acontecer, clique neste botão para que ele mude para “PAPER”.

2 – Clique na linha da visão. A visão será selecionada. Clique no canto superior
esquerdo da visão (Ponto1), arraste até o Ponto 2 e dê outro clique. Clique no
canto inferior esquerdo da visão (Ponto3), arraste até o Ponto4 e dê outro
clique. Sua visão ocupa agora menos espaço na página.

Ponto1
X

Ponto2
X

Ponto4
X

Ponto3
X

Se o desenho aparecer cortado, verifique se a visão está adequada para exibilo. Caso esteja, você poderá aumentar a área da visão, realizando a operação
contrária à que foi descrita no passo anterior.
A visão se comporta como um objeto. Sendo assim, você poderá movê-la com
o comando “Move” do menu “Modify”. Poderá também criar cópias ou apagar.

58
9.6 - ESCREVENDO DENTRO DAS VISÕES
Na barra de status não pode estar sendo exibido o botão “M:Layout1”. Se isto
acontecer, clique neste botão para que ele mude para “P:Layout1”. Fazendo
isto, tudo que você escrever aparecerá somente no papel de impressão.
Escreva qualquer observação normalmente com a ferramenta de texto do
Menu de desenhos.
9.7 - CRIANDO NOVAS VISÕES DO DESENHO
Você pode criar outras visões desta peça na página, para detalhar melhor seu
desenho.
Vamos criar uma visão da peça dentro da página que você desenhou.
Lembre-se de verificar se você se encontra no ambiente de impressão
“Layout”. Siga os passos abaixo.
Importante: Observe a layer ou camada que você está utilizando. A visão a ser
criada terá a mesma layer. Normalmente, escolhemos a Layer ou camada de
nome Defpoints, porque esta camada não é impressa e a linha da visão não se
confunde com as linhas do desenho.
1 – Clique na opção “View ou visualizar” existente na barra de menus do
ProjeCAD (parte superior do vídeo).
2 – Leve o mouse até a opção Viewport. Você está prestes a criar uma visão
flutuante do desenho dentro da sua página.
3 – Escolha a opção “1 Viewport”. Na barra de comandos aparecerá a
mensagem: ...First corner. O ProjeCAD pede para que você marque o
primeiro ponto para que ele crie a visão do desenho para você.
4 – Clique na indicação “Ponto 1” mostrada no desenho acima. Na barra de
comandos aparecerá a mensagem: Opposite corner:. O ProjeCAD pede um
outro ponto para que ele termine de formar a visão do desenho. Clique no
“Ponto 2”.

X

Ponto 1

X
Ponto 2

Visto:

Arqui o:
v

Data:

Em substituição

Escala:

Substituído

Senai

Folha:

Título:

Visto:

Arqui o:
v

Data:

Em substituição

Escala

Substituído

Senai

Folha:

Título:

59
Uma Viewport (visão) é criada e o desenho é mostrado dentro da página de
impressão. Como foi dito anteriormente, esta visão possui uma linha de
delimitação que deve ser escondida. Lembre-se sempre de aplicar a layer
Defpoints à visão.
Quando a visão é inserida na página, não conseguimos trabalhar com a peça
que estamos visualizando. Ao tentarmos selecionar os elementos desenhados,
somente o quadro da visão é selecionado. Isto acontece porque estamos com
o foco de trabalho na página de impressão e não na peça.
Para trabalhar com a peça, mesmo estando trabalhando no ambiente de
impressão, dê um clique duplo no botão “P:Layout1” mostrado na barra de
Status, que fica na parte inferior da tela do Windows. Este botão alterará sua
exibição para “M:Layout1” (MODEL) e você poderá trabalhar com o desenho
propriamente dito. Se desejar, dê dois cliques dentro da visão para obter o
mesmo resultado. Qualquer alteração feita na visão, enquanto estiver
aparecendo a indicação “M:Layout1” (MODEL) na barra de status, irá afetar a
peça. Para voltar para a condição de Paper, Dê dois cliques fora da visão ou
clique na palavra “P:Layout1” (PAPEL) abaixo e à direita para que ela vire
Paper.

60
9.8 – CONSTRUÇÃO DE LAYOUTS DE PÁGINA
Todo desenho deve ser apresentado dentro de um espaço apropriado com
uma legenda que forneça os dados necessários à sua identificação, ao seu
controle e ao seu entendimento.
No layout Abaixo podemos observar o
desenho de uma página no formato A4 (210x297)mm com legenda e as
respectivas medidas. Crie uma padronização de folhas para o seu trabalho,
observando as normas de desenho técnico. Esta folha que irá conter o
desenho deve ser feita no modo de impressão ou Layout do AutoCAD.
Observe o desenho abaixo:

Visto:

Data:

Em substituição a:

Escala:

Substituído por:

Senai

Arquivo:

Folha:

Título:

61
9.9 – FORMATOS DE PAPEL
O ProjeCAD oferece as guias de nome Layout com a página que será
impressa, mas não oferece um desenho de layout pronto.
Observamos que cada guia (Layout1, Layout2, Layout3 etc.) possui apenas
uma página em branco. Você pode utilizar este espaço desta página em branco
ou o espaço em torno dele para construir os layouts. Você pode construir várias
páginas para impressão no mesmo layout e, posteriormente, pode escolher
qual delas deseja imprimir.
Você deve construir o formato da página, com margens e legenda. Utilize
elementos como linha, retângulo, texto etc. e construa sua página da maneira
que desejar.
Padronize esta página para todos os trabalhos que for realizar na empresa.
Coloque as visões nas escalas que for preciso de maneira que elas
identifiquem bem o desenho a ser impresso. Crie o número de visões que for
necessário para representar o desenho.
Formato A4
Medida do papel: 210 x 297 mm.
Margem esquerda: 25 mm.
Outras margens: 7 mm
Medida da legenda: 90 x 25 ou 120 x 35 mm.

Formato A3
Medida do papel: 4210 x 297 mm.
Margem esquerda: 25 mm.
Outras margens: 10 mm
Medida da legenda:120 x 35 mm.
As dobras estão mostradas com linha
tracejada. A legenda deve aparecer
depois de efetuadas as dobras.

62
Formato A2
Medida do papel: 594 x 4210 mm.
Margem esquerda: 25 mm.
Outras margens: 10 mm.
Medida da legenda:120 x 35 mm ou 175 x 50 mm.
As dobras estão mostradas com linha tracejada (observar as medidas).
A legenda deve aparecer depois de efetuadas as dobras.

63
Formato A1
Medida do papel: 841 x 594 mm.
Margem esquerda: 25 mm.
Outras margens: 10 mm.
Medida da legenda: 175 x 50 mm.
As dobras estão mostradas com linha tracejada (observar as medidas).
A legenda deve aparecer depois de efetuadas as dobras.

64
Formato A0
Medida do papel: 1189 x 841 mm.
Margem esquerda: 25 mm.
Outras margens: 10 mm.
Medida da legenda: 175 x 50 mm.
As dobras estão mostradas com linha tracejada (observar as medidas).
A legenda deve aparecer depois de efetuadas as dobras.

65
9.10 - IMPRIMINDO O DESENHO
Para imprimir o desenho, você deve estar dentro da guia “Layout”. Seu
layout já deverá estar previamente configurado. Assim sendo, clique no botão
Print ou plotar. Você pode escolher “File ou arquivo” e depois “Plot” no
menu do ProjeCAD. Aparecerá a janela de impressão.

Verifique se aparece corretamente o nome da sua impressora.
Verifique se o tamanho do papel está correto: A4, A3 etc.
A escala é sempre 1:1. Isto indica que o desenho será impresso do mesmo
tamanho que foi montado por você. Escolha a opção mm se você não trabalha
com polegadas.

66
Clique no botão Visualizar ou View para ver como a impressão vai sair.
Clique em Ok para imprimir o desenho.

67
Exercício – Pino Recartilhado

Exercício - Grelha

68
Exercício - Placa Base

Exercício - Disco

69
Exercício - Peça 1
A
CORTE

A

Exercício - Peça 3

70
Exercício - Velocímetro

71
Exercfcio- Eixo
32

0.

....

3x45•

3x45•

8

8

I

/I

'l// k
16

W ;////
..
....

20

30

j /////
....
10

/

'

32

3

16

22

6

21

72

Apostila de proje cad

  • 1.
    SENAI – “ServiçoNacional de Aprendizagem Industrial” Centro de Formação Profissional “AFONSO GRECO” PROJECAD Praça Expedicionário Assunção, 168 – Bairro Centro Nova Lima – MG – CEP: 34.000-000 Telefone: (31) 3541-2666
  • 2.
    Presidente da FIEMG OlavoMachado Júnior Gestor do SENAI Petrônio Machado Zica Diretor Regional do SENAI e Superintendente de Conhecimento e Tecnologia Lucio Sampaio Gerente de Educação Edmar Fernando de Alcântara
  • 3.
    SUMÁRIO: Apresentação .................................................................................................04 1 –Iniciando o Trabalho com ProgeCAD ...................................................05 1.1 – Tela Inicial do ProgeCAD ......................................................................07 1.2 – Barra de Títulos .....................................................................................07 1.3 – Barra de Menus .....................................................................................07 1.4 – Barra de Ferramentas Padrão ...............................................................08 1.5 – Barra de Propriedades do Objeto ..........................................................08 1.6 – Barra de Ferramentas de Desenho .......................................................08 1.7 – Barra de Ferramentas Modify ................................................................08 1.8 – Indicação do Sistema de Coordenadas do Usuário ..............................08 1.9 – Caixa de Comandos ..............................................................................09 1.10 – Barra de Comentários ou de Status ...................................................09 1.11 – Unidades de Medidas do Desenho .....................................................09 2 – Sistema de Coordenadas ......................................................................09 2.1 – Coordenadas Absolutas ........................................................................10 2.2 – Coordenadas Relativas .........................................................................11 2.3 – Coordenadas Polares ...........................................................................12 2.4 – Considerações ......................................................................................12 2.4.1 – Vírgula e Ponto ...................................................................................12 2.4.2 – Tecla F7 .............................................................................................12 2.4.3 – Tecla F8 .............................................................................................13 3 – Barra de Ferramentas Draw ..................................................................14 3.1 – Comando Line .......................................................................................14 3.2 – Considerações ......................................................................................14 3.2.1 – Tecla <Enter> .....................................................................................14 3.2.2 – Limites da Tela ...................................................................................15 3.2.3 – Seleção ..............................................................................................15 3.2.4 – Pan Realtime ......................................................................................15 3.2.5 – Zoom Realtime ...................................................................................15 3.2.6 – Zoom Window (Z <Enter> W <Enter>) ...............................................16 3.2.7 – Zoom All (Z <Enter> A <Enter>) .........................................................16
  • 4.
    3.3 – Retangle(Retângulo) ............................................................................16 3.4 – Circle (Círculo) ......................................................................................17 3.5 – Construction Line (Linha de Construção) ..............................................17 3.6 – Polinine .................................................................................................18 3.7 – Polygon (Polígono) ................................................................................19 3.8 – Arc (Arco) ..............................................................................................19 3.9 – Elipse ....................................................................................................19 3.10 – Multiline Text (Texto) ..........................................................................20 3.11 – Hachura ..............................................................................................21 3.12 – Blocks .................................................................................................22 3.12.1 – Criando Bloco ...................................................................................22 3.12.2 – Inserindo o Bloco .............................................................................23 4 – Comandos de Precisão .........................................................................24 4.1 – Exercícios ..............................................................................................25 5 – Menu Modify ...........................................................................................26 5.1 – Erase (Borracha) ...................................................................................26 5.2 – Copy (Copiar) ........................................................................................26 5.3 – Mirror (Espelho) ....................................................................................26 5.4 – Offset ....................................................................................................27 5.5 – Array Retangular ...................................................................................28 5.6 – Array Polar ............................................................................................30 5.7 – Move (Mover) ........................................................................................31 5.8 – Rotate (Rodar) ......................................................................................31 5.9 – Scale (Escala) .......................................................................................32 5.10 – Trim .....................................................................................................32 5.11 – Extend (Estender) ...............................................................................33 5.12 – Chanfer (Chanfro) ...............................................................................34 5.13 – Fillet ....................................................................................................35 5.14 – Explode ...............................................................................................36 6 – Dimensionando o Desenho ...................................................................38 6.1 – Linear Dimension (Dimensão Linear) ....................................................38 6.2 – Alterando a Dimensão no ProgeCAD.....................................................39 6.2.1 – Dimension Lines (Linhas de Dimensão) ...........................................40 6.2.2 – Extension Lines (Linhas de Extensão) .............................................41 6.2.3 – Arrows ou ponta de seta ..................................................................42
  • 5.
    6.2.4 – (Aparênciado Texto) ........................................................................42 7– Layers ou Camadas ................................................................................44 7.1 – Exercício de Utilização de Layers .........................................................47 7.2 – Exercício – Figuras ...............................................................................47 8 – Escala .....................................................................................................49 9– Imprimindo um Arquivo no ProgeCAD .................................................51 9.1 – Configurando a página de impressão ...................................................51 9.2 – Gerenciador de configuração de página ...............................................52 9.3 – Configuração de página ........................................................................53 9.4 – Aplicando uma escala ao desenho .......................................................58 9.5 – Alterando o tamanho da caixa de visão ................................................60 9.6 – Escrevendo dentro das visões ..............................................................61 9.7 – Criando novas visões do desenho ........................................................61 9.8 – Construções de Layouts de Página .......................................................63 9.9 – Formatos de papel .................................................................................64 9.10 – Imprimindo o desenho .........................................................................68 10 – Exercícios ...............................................................................................70
  • 6.
    Apresentação “Muda a formade trabalhar, agir, sentir, pensar na chamada sociedade do conhecimento.“ Peter Drucker O ingresso na sociedade da informação exige mudanças profundas em todos os perfis profissionais, especialmente naqueles diretamente envolvidos na produção, coleta, disseminação e uso da informação. O SENAI, maior rede privada de educação profissional do país,sabe disso , e ,consciente do seu papel formativo , educa o trabalhador sob a égide do conceito da competência:” formar o profissional com responsabilidade no processo produtivo, com iniciativa na resolução de problemas, com conhecimentos técnicos aprofundados, flexibilidade e criatividade, empreendedorismo e consciência da necessidade de educação continuada.” Vivemos numa sociedade da informação. O conhecimento, na sua área tecnológica, amplia-se e se multiplica a cada dia. Uma constante atualização se faz necessária. Para o SENAI, cuidar do seu acervo bibliográfico, da sua infovia, da conexão de suas escolas à rede mundial de informações – interneté tão importante quanto zelar pela produção de material didático. Isto porque, nos embates diários, instrutores e alunos, nas diversas oficinas e laboratórios do SENAI, fazem com que as informações, contidas nos materiais didáticos, tomem sentido e se concretizem em múltiplos conhecimentos. O SENAI deseja, por meio dos diversos materiais didáticos, aguçar a sua curiosidade, responder às suas demandas de informações e construir links entre os diversos conhecimentos, tão importantes para sua formação continuada ! Gerência de Educação e Tecnologia
  • 7.
    1 – INICIANDOO TRABALHO COM O PROGECAD ProgeCAD é um programa utilizado para fazer desenhos em 2D ou 3D, utilizado como ferramenta principal para trabalho nas áreas de engenharia, arquitetura, mecânica, etc.. Para iniciar o trabalho com o ProgeCAD escolha: "Iniciar", "Programas" e escolha a opção "ProgeCAD 2010", por exemplo. O programa será aberto. Após o programa aberto para permitir que o usuário escolha realizar o trabalho em milímetros ou em polegadas. Para que esta tela apareça, clique em File + New que a tela Star irá aparecer. Para fazer isso no Autocad digite o comando STARTUP e pressione a tecla Enter. Na parte de baixo da tela do AutoCAD você consegue visualizar o comando dado e você receberá um retorno dizendo: Inserir um novo valor para Startup <0>. Digite o número 1 e pressione Enter. Feche o autoCAD e abra novamente. Agora a telinha de início mostrada abaixo irá aparecer. Antes de iniciar o trabalho com o programa, você deverá escolher uma das opções da janela chamada "Start (Inglês) ou “Começar” (português) mostrada abaixo.
  • 8.
    Use a Wizardou usar assistente Configura unidades de medida, estilos, área de desenho, tamanho de texto, etc., baseado em modelos existentes. Use a template ou Usar modelo Oferece modelos de páginas existentes já prontas para que você possa trabalhar. Você poderá escolher o tamanho de página que precisar (A0, A1, A2, A3, A4, etc.) Start From Scratch ou Começar do Zero Através desta opção você poderá escolher somente a configuração da medida que você utilizará durante o seu trabalho. Você poderá escolher entre os sistemas métrico ou English. O sistema English trabalha com medidas em polegadas e pés. Este não é o nosso sistema de medida. O sistema métrico trabalha em milímetros. Utilize o sistema de medidas métrico. Open a Drawing ou abrir desenho Abre um desenho já existente no ProgeCAD. Trabalhar sem passar por esta tela implica em correr o risco de se trabalhar com o ProgeCAD em polegadas sem saber. Escolha o botão “Start from scratch” ou “Começar do zero”. Sempre utilizaremos esta opção. Marque a opção “Métrica” existente nesta tela para realizar o trabalho em milímetros. Pressione OK para iniciar o trabalho com o CAD.
  • 9.
    1.1 - TELAINICIAL DO PROGECAD Barra de Títulos Barra de Menus Barra de Ferramentas Padrão Barra de Propriedades de Objeto Barra de Ferramentas de Desenho Barra de Ferramentas Modify Sistema de Coordenadas do Usuário Caixa de Comandos Barra de Comentários 1.2 - BARRA DE TÍTULOS Exibe o nome do arquivo com o qual você está trabalhando e permite o controle da janela através dos botões minimizar, maximizar/restaurar e fechar. 1.3 - BARRA DE MENUS Exibe o menu de opções para realizarmos os trabalhos com o ProgeCAD. Detalharemos os menus durante o trabalho com o programa.
  • 10.
    1.4 - BARRADE FERRAMENTAS PADRÃO Barra com botões de atalho. Esta barra oferece uma maneira mais fácil e rápida de realizarmos operações existentes na barra de menus. Exibe alguns desenhos já conhecidos como: Cria um novo arquivo. Abre um arquivo existente no ProgeCAD. Grava o trabalho. Imprime um trabalho. Visualizar impressão. Recortar, copiar e colar informação. 1.5 - BARRA DE PROPRIEDADES DO OBJETO Determina características do objeto como cor do objeto, tipo de linha, tamanho de um texto, etc. 1.6 - BARRA DE FERRAMENTAS DE DESENHO Esta barra equivale à opção "Draw" da "Barra de Menus”. Esta barra exibe botões que permitem a construção de desenhos no ProgeCAD, através de elementos como linha, polígono, retângulo, círculo, arco, texto, etc.. 1.7 - BARRA DE FERRAMENTAS MODIFY Modifica um elemento do desenho. 1.8 - INDICAÇÃO DE SISTEMA DE COORDENADAS DO USUÁRIO Indica o plano de trabalho utilizado pelo usuário. Podemos trabalhar utilizando três planos, X (plano horizontal), Y (plano vertical) e Z (plano normal à tela para indicar profundidade). 10
  • 11.
    1.9- CAIXA DECOMANDOS Local onde digitamos os comandos e informações solicitadas pelo ProgeCAD. Através desta caixa o programa interage com o usuário, pedindo e recebendo informações. O ProgeCAD só estará pronto para aceitar um novo comando, se na barra de comandos estiver exibindo a mensagem: command:. Para ocultar a caixa de comando basta dar um clique na barra de comentários e para volta a visualização e só clicar novamente. 1.10 - BARRA DE COMENTÁRIOS OU DE STATUS Exibe opções e comentários que auxiliam durante o trabalho com o ProgeCAD. À diteita desta barra, há uma numeração que indica a posição do cursor na tela. Para desabilitar a indicação da posição do cursor pressione a tecla <F6> do teclado. Ainda na barra de comentários encontramos as opções: Grid (F7) Habilita/desabilita a exibição de pontos que auxiliam durante a confecção do desenho. Snap (Ctrl + B) Liga/desliga a atração aos pontos do Grid. Ortho (F8) Força movimentação do cursor no sentido horizontal ou vertical. Esnap (F3) Liga/desliga a atração a pontos de um objeto já existente (ponto final, ponto do meio, ponto central etc.). Este recurso ajuda a elaborar o desenho com mais precisão. 1.11 - UNIDADE DE MEDIDAS DO DESENHO Trabalharemos com todos os desenhos em milímetro. Esta opção é escolhida quando iniciamos o programa, através da caixa Start Up ou Criar novo desenho, comentada no início da apostila. 2 - SISTEMA DE COORDENADAS O ProgeCAD trabalha com um sistema de coordenadas que informam a posição dos pontos que compõem os objeto na tela. Temos três eixos: X, Y e Z. O eixo X informa a localização do ponto no sentido horizontal. O eixo Y informa a localização do ponto no sentido vertical e o eixo Z informa a localização do objeto em um plano normal ao plano X e Y. Este último plano é utilizado quando se precisa trabalhar com objetos em 3D. Portanto não o estudaremos. Quando informarmos a localização de um ponto, utilizaremos somente X e Y. O valor de Z será considerado "Zero". 11
  • 12.
    2.1 - COORDENADASABSOLUTAS Utilizamos o sistema de coordenadas absolutas, quando sabemos exatamente a localização do objeto na página do ProgeCAD. Para construirmos uma reta, precisamos de dois pontos. Se vamos fazer uma reta, temos que saber a localização exata em (X,Y) do ponto de início e do ponto final. É possível fazer elementos informando a posição real da página onde eles vão ficar. Estas são as coordenadas absolutas. Vejamos um exemplo: Vamos fazer uma linha que vai do ponto (0,0)mm da janela do ProgeCAD até o ponto (150,100) mm, ou seja, 150 mm para a direita e 100 mm para cima. 01 - Clique no botão line para fazer a linha ou escolha "Draw" e depois "Line". Na barra de comandos aparecerá a mensagem: "Line from Point:" pedindo o ponto inicial da linha. 02 - Informe o início da linha que é 0,0 digitando: 0,0 e aperte <Enter>. Aparecerá a mensagem <End point:> pedindo o próximo ponto para formar a linha. 03 - Informe o próximo ponto digitando: 150,100 e aperte <Enter>. Aparecerá novamente a mensagem <End point:>. O ProgeCAD quer saber se você quer formar mais linhas. 04 - Para terminar o trabalho aperte a tecla <Enter>. Você acabou de fazer uma linha que começa no ponto (0,0) da página e vai até o ponto (150,100). y 100 Ponto 150,100 150 x Ponto 0,0 Este sistema de coordenadas absolutas não é muito utilizado, porque quase sempre não sabemos a localização dos objetos na página do ProgeCAD. 12
  • 13.
    2.2 - COORDENADASRELATIVAS Este sistema de coordenadas permite a formação de um objeto a partir de um ponto qualquer da página. Para informarmos a localização de um ponto, utilizaremos o comando "@X,Y". Vejamos o exemplo a seguir: Construiremos um retângulo de 100 mm de largura e 50 mm de altura utilizando a ferramenta de linha e o sistema de coordenadas relativas. 01 - Clique no botão line para fazer a linha ou escolha "Draw" e depois "Line". 02 - Quando aparecer Start of Line na barra de comandos, clique em qualquer lugar da tela. 03 - Ao aparecer a mensagem End Point: escreva @100,0 e aperte <Enter> para fazer uma linha a 100mm à direita na horizontal a partir do último ponto informado. Veja na figura. 04 - To Point: @0,-50 e aperte <Enter> para fazer uma linha a 50mm para baixo na vertical a partir do último ponto informado. Veja na figura. 05 - To Point: @-100,0 e aperte <Enter> para fazer uma linha a 100mm para a esquerda na horizontal a partir do último ponto informado, a partir do último ponto informado. Veja na figura. 06 - To Point: @0,50 e aperte <Enter> para fazer uma linha a 50mm para cima na vertical, a partir do último ponto informado. Veja na figura. Início 1 5 4 @-100,0 2 @0,50 @-100,0 @0,50 3 13
  • 14.
    2.3 - COORDENADASPOLARES Podemos fazer um traço utilizando coordenadas polares, quando sabemos o comprimento deste traço e sua inclinação. Uma coordenada polar é feita da seguinte forma: @"distância"<"ângulo". Vamos fazer uma reta de 100 mm de comprimento a um ângulo de 30°. 01 - Clique no botão line ou escolha "Draw" e depois "Line". 02 - Quando aparecer Start of Line na barra de comandos, clique em qualquer lugar da tela. 03 - Ao aparecer a mensagem End Point: escreva @100<30 para fazer uma linha de 100mm de comprimento com uma inclinação de 30°. Veja na figura. 100 mm 30° 2.4 – CONSIDERAÇÕES 2.4.1 - VÍRGULA E PONTO No AutoCAD a vírgula e o ponto têm funções específicas. A Vírgula é utilizada quando vamos informar uma coordenada de um ponto. Ela separa a ordenada da abscissa, ou seja, separa a informação vertical e horizontal que você deu para a localização do ponto. O Ponto é utilizado quando é preciso informar um valor que possui casas decimais. Ex: para informarmos o número DEZ E MEIO digitamos: 10.5 e não 10,5 como estamos acostumados. 2.4.2 - TECLA F7 Habilita ou desabilita a exibição das grids. Faz a mesma função da opção GRID da Barra de Status. 14
  • 15.
    2.4.3 - TeclaF8 Força a movimentação do cursor na horizontal ou na vertical. Faz a mesma função da tecla ORTHO existente na barra de Status. Podemos desenhar rapidamente uma figura composta de linhas retas horizontais e verticais. Veja a figura abaixo: 5 4 3 80mm 2 150mm 40mm 90mm 50mm 230mm 1 6 Vamos construir esta figura. 01 - Verifique se a opção ORTHO da barra de status está ligada. Se não estiver, dê dois cliques sobre ela ou aperte a tecla <F8> do teclado. 02 - Clique no comando "Line" ou linha para fazer a figura. 03 - Aparecerá: Start of Line. Clique em qualquer ponto na tela para iniciar o trabalho com as linhas. Este primeiro ponto será o ponto indicado com o número 1 no desenho acima. 04 - End point: - Arraste o mouse para cima, digite 50 e aperte <Enter>. Ao arrastar o mouse para cima com a opção ORTHO ligada, o programa considera o valor de X (horizontal) como sendo zero e o valor de Y (vertical) positivo. Está feita a linha 1-2. 05 - End point: - Arraste o mouse para a direita, digite 150 e <Enter>. Ao arrastar o mouse para a direita com a opção ORTHO ligada, o programa considera que o valor de X é positivo e o valor de Y é zero. Esta é a linha 2-3. 06 - End point: - Arraste o mouse para cima, digite 40 e aperte <Enter>. 07 - End point: - Arraste o mouse para a direita, digite 80 e aperte <Enter>. 08 - End point: - Arraste o mouse para baixo, digite 90 e aperte <Enter>. 09 - End point: - Digite Close para fechar a figura ou faça: arraste o mouse para a esquerda, digite 230 e aperte <Enter>. A figura está feita. 15
  • 16.
    3 - BARRADE FERRAMENTAS DRAW Todas as opções existentes na barra de ferramentas "Draw" estão disponíveis no menu "Draw". Você poderá escolher entre clicar no botão correspondente ao comando ou clicar no menu "Draw" e escolher o nome do comando. 3.1 - Comando Line ou Linha Você já conhece este comando. Para acessá-lo, clique no botão line existente na barra de ferramentas de desenho ou escolha: "Draw/Line" ou Desenhar/Linha. O ProgeCAD exibirá a mensagem Start of Line: (linha do ponto) na barra de comandos. Clique em um ponto ou informe o primeiro ponto através de coordenadas. O ProgeCAD exibirá a mensagem: End point: - Informe o próximo ponto clicando na tela ou digite as coordenadas do próximo ponto. Aperte <Enter>. O ProgeCAD continuará exibindo a mensagem End point: para que você possa informar os próximos pontos e fazer novas linhas. Se você não desejar continuar fazendo linhas, aperte a tecla <Enter> para terminar o comando. 3.2 – CONSIDERAÇÕES Antes de prosseguirmos com o menu Draw, faremos algumas considerações importantes com relação à visualização do desenho na página e à utilização do mouse para que você possa trabalhar de maneira mais eficaz. 3.2.1 - TECLA <ENTER> A tecla <Enter> confirma a digitação de uma informação. Apertando <Enter>, conseguimos repetir o último comando utilizado. O Botão direito do mouse funciona como a tecla <Enter>. Portanto, para confirmar ou terminar um comando, pode-se utilizar este botão. Tecla <Enter> no ProgeCAD 16
  • 17.
    3.2.2 - LIMITESDA TELA O ProgeCAD possui uma página de trabalho, mas não precisamos trabalhar somente dentro dela. Podemos fazer a planta de uma casa em dimensões reais. A prancheta de trabalho do ProgeCAD tem dimensões infinitas. Para imprimir, reduzimos o trabalho e informamos a escala de redução. Portando, é importante sabermos trabalhar com visualização do objeto na página. A seguir veremos os comandos de visualização. 3.2.3 – SELEÇÃO Para selecionar elementos na tela do AutoCAD basta clicar no elemento que se deseja selecionar e ele exibirá as marcas de seleção. Se quiser apagar um objeto selecionado, aperte a tecla "Delete" do teclado. Para selecionar vários objetos, é preciso fazer uma janela envolvendo estes objetos. Esta janela é feita clicando uma vez na tela para informar um dos cantos da janela e outra vez para informar o canto oposto. Se você fizer a janela de seleção da esquerda para a direita somente serão selecionados os objetos que estiverem contidos totalmente na janela. Se a janela for feita da direita para a esquerda, serão selecionados todos os objetos dentro da janela e também os objetos em que a linha de seleção estiver tocando. 3.2.4 - PAN REALTIME OU PAN EM TEMPO REAL Este é o botão do comando Pan, existente na barra de ferramentas padrão. Ele é utilizado para mover a tela para que você veja informações que não podem ser vistas porque estão além dos limites do vídeo. Funciona como as barras de rolagem. Para ver o seu funcionamento, você deve ter um desenho na tela. 01 - Clique no botão Pan. 02 - Clique na tela, mantenha o botão do mouse pressionado e arraste para qualquer lado. O ProgeCAD levará você para o lado arrastado. 03 - Para sair deste comando, aperte <Enter> ou <Esc>. 3.2.5 - ZOOM REALTIME OU ZOOM EM TEMPO REAL Este comando é utilizado para que o usuário possa aproximar ou afastar a figura, aumentando ou diminuindo o campo de visualização do seu trabalho. Para utilizá-lo você deve ter uma figura em sua tela. 01 - Clique no botão Zoom Realtime. 02 - Clique na tela, mantenha o botão do mouse pressionado e arraste para cima para ver a figura mais de perto ou arraste para baixo para afastar a figura. 03 - Para sair deste comando, aperte <Enter> ou <Esc>. 17
  • 18.
    3.2.6 - ZOOMWINDOW OU JANELA DE ZOOM Este botão permite que você visualize mais de perto as informações da tela, através de uma janela de seleção. Para visualizar um detalhe, siga os passos. 01 - Clique em Zoom Window. 02 - Na barra de comandos aparecerá: First corner: para que você informe o primeiro canto da janela. Clique no primeiro ponto para envolver o detalhe que deseja ver. 03 - Aparece Other corner: Informe o outro canto da janela de seleção. O AutoCAD exibirá o conteúdo desta janela de seleção na tela inteira. 3.2.7 - ZOOM ALL OU ZOOM TOTAL Clicando neste botão, você pode ver a página de trabalho do ProjeCAD nos limites do monitor. 3.3 - RETANGLE OU RETÂNGULO Para fazer um retângulo, clique na ferramenta de retângulo da barra Draw (desenho) ou no menu "Draw" e depois em "Rectangle". Vamos fazer um retângulo de 150 mm de Comprimento e 100 mm de altura. 01 - Clique no comando Draw. 02 - Na barra de comandos, o ProgeCAD exibirá a mensagem: <First corner of rectangle>: que significa primeiro canto. Clique em qualquer lugar para informar o primeiro canto para o retângulo. 03 - O Progecad exibirá: Other corner of rectangle:, que significa "outro canto". Escreva: @150,100 e aperte <Enter> para informar as coordenadas do retângulo a partir do primeiro ponto informado. O retângulo está pronto. 18
  • 19.
    3.4 - CIRCLEOU CÍRCULO Clique no menu "Draw / Circle" ou escolha o botão correspondente na barra de ferramentas de desenho. Vamos fazer um círculo de 30 mm de raio. 01 - Clique no comando Circle. 02 - Na barra de comandos aparecerá: <Center of Circle>: Clique na tela para informar o centro da circunferência. 03 - Na barra de comandos aparecerá: Diameter/<Radius>: Obs.: Neste momento o ProgeCAD está pedindo o raio ou o diâmetro do círculo. Observe que a palavra raio está entre os sinais <>. Isto quer dizer que ProgeCAD está pronto para receber o raio da peça. Se você quiser informar o diâmetro, você terá que digitar d (letra maiúscula da palavra diameter) e apertar <Enter>. Assim o ProgeCAD aceitará o diâmetro. 04 - Digite 30 e aperte <Enter>. O círculo terá 30 mm de raio. 3.5 - CONSTRUCTION LINE (LINHA DE CONSTRUÇÃO) Esta linha é infinita para os dois lados. É utilizada quando precisamos de uma linha de referência cujo comprimento é ainda desconhecido ou não importa no momento. Clique no menu "Draw / Construction line" ou escolha o botão correspondente. Vamos fazer uma linha na vertical como exemplo: 01 - Clique no comando Construction line. 02 - Na barra de comandos aparecerá: ...<Point along Line>. Clique no primeiro ponto na sua tela. Obs.: Verifique se a opção ORTHO da barra de Status está ligada. Se não estiver, dê dois cliques sobre esta opção ou pressione a tecla <F8> do teclado para ligá-la. 03 - Na barra de comandos aparecerá: Througth point: que significa - através do ponto. Arraste o ponteiro do mouse para baixo ou para cima para fazer a linha na vertical. Clique na tela para informar o próximo ponto. 04 - Na barra de comandos aparecerá: Througth point:. Aperte <Enter> para terminar o comando. Agora você tem uma linha infinita na vertical. Para apagá-la selecione-a com um clique e aperte a tecla <Delete>. 19
  • 20.
    3.6 - POLILINEOU POLILINHA Realiza basicamente a mesma função da linha. A diferença é que as linhas feitas com a polilinha estarão ligadas, ou seja, ao clicar em uma linha, todas serão selecionadas. Quando o desenho é feito com a linha, cada segmento se comporta como um objeto separado. Para trabalhar com a polilinha escolha "Draw / Poliline" ou o botão correspondente. 3.7 - POLYGON (POLÍGONO) Constrói um polígono fechado com o número de lados que você quiser. Para trabalhar com esta ferramenta, escolha "Draw / Polygon" ou clique no botão correspondente. Vamos construir um polígono. 01 - Clique no comando Polygon 02 - Na barra de comandos aparecerá: Number of Sides <4>. O ProgeCAD quer saber o número de lados do polígono que você deseja fazer e diz que o padrão é 4 lados. 03 - Digite 6 e aperte <Enter>. 04 - Na barra de comandos aparecerá: <Center of polygon>:. Clique na tela para informar o centro do polígono. 05 - Na barra de comandos aparecerá: <Side / Vertex> Obs.: O ProgeCAD está perguntando se este polígono irá iniciar pelo Lado ou Vértice, para isso basta clicar <Select Side point>: S e ele começará pelo lado que implicará num polígono Circunscrito e para começar pelo vértice basta clicar <Select Vertex point>: V isso implicará num polígono Inscrito. 06 - Na barra após escolher se o polígono será pelo Inscrito ou Circunscrito: Informe o raio da circunferência onde o polígono ficará inscrito, digitando qualquer valor como, por exemplo, digite 50 e aperte <Enter>. O polígono está feito. 20
  • 21.
    3.8 - ARC(ARCO) Clique no desenho correspondente da barra de ferramentas "Draw". O arco será feito por três pontos. 01 - Clique no comando Arc. 02 - Na barra de comandos aparecerá: <Start of Arc>:. Clique no primeiro ponto para iniciar o arco. 03 - Na barra de comandos aparecerá: <Second point>:. Informe o segundo ponto por onde o arco irá passar com um clique. 04 - Na barra de comandos aparecerá: <End point>:. Informe o último ponto para o arco com um clique. O arco foi feito. Ele passa pelos três pontos onde você clicou. Podemos fazer o arco de várias outras maneiras, escolhendo a opção "Draw / Arc" do menu principal. Aparece uma para você escolher os três pontos do arco que irá informar. Escolha a opção desejada. Start = Início End = Fim Center = Centro Angle = ângulo Direction = Direção Radius = Raio Length = Comprimento 3.9 – ELIPSE Podemos fazer uma elipse clicando em "Draw / Elipse" ou no desenho correspondente. Para construí-la basta informar três pontos. Vamos fazer um exercício 01 - Clique no comando Elipse 02 - Na barra de comandos aparecerá: <First end of ellipse axis>: O ProgeCAD pede o primeiro ponto para fazer a elipse. Clique em um ponto da tela. 03 - Na barra de comandos aparecerá: Second end of axis: O ProgeCAD pede o segundo ponto para fazer a elipse. Digite @0,-100 e aperte <Enter> para informar um ponto a 100 mm abaixo na vertical. 21
  • 22.
    04 - Nabarra de comandos aparecerá: <Rotation/<Other axis>:O ProgeCAD pede o outro eixo para fazer a elipse. Digite @100,0 e aperte <Enter> para informar o eixo. Veja na figura abaixo o primeiro, o segundo e o terceiro ponto informados. 1 100 X 100 X3 X 2 3.10 - MULTILINE TEXT (TEXTO) Para fazer os textos utilize esta ferramenta existente no menu "Draw / Multiline text" ou utilize o botão correspondente. Vamos fazer um exercício. 01 - Clique no comando Multiline text. 02 - Na barra de comandos aparecerá: First corner for block of text: (especifique o primeiro canto). Clique em qualquer lugar na tela para informar o primeiro canto para a caixa de texto. 03 - Na barra de comandos aparecerá: <Opposite corner for block of text>: (especifique o canto oposto). Clique abaixo e à direita de onde você clicou para formar a caixa de texto. Aparecerá a tela abaixo para você digitar o texto. Escolha a fonte, o tamanho e outros atributos. Escreva o texto e clique no botão OK quando terminar. O texto aparecerá na tela. 22
  • 23.
    3.11 – HACHURA Antesde fazer a hachura, vamos construir o desenho representado no retângulo abaixo. 01 - Clique no botão do comando Hachura. Aparecerá a janela Boundary Hatch ou Hachura e Gradiente 02 - Clique no desenho à frente de Amostra para escolher o tipo de hachura que você deseja. 03 - Depois de escolher o tipo de hachura, clique em "Pick points" ou adicionar pontos de seleção para selecionar a área onde a hachura irá acontecer. Pressione <Enter> 04 - Clique no botão "Preview" ou vizualizar para visualizar a hachura. No ProgeCAD, pressione tecla ESC para continuar o trabalho. Fique atento às mensagens da caixa de comando porque há diferenças de procedimento em outras versões. Obs,: Na opção Scale existe o valor 1.000, que significa 1 . Esta é a escala da hachura. Se, na visualização, você notou que a hachura está muito pequena, você deve aumentar este valor. Ex.: 5 Se a hachura estiver muito exagerada, você deve diminuir este valor. Ex.: 0.2 . 05 - Ao final, depois de ter verificado a escala da hachura, clique em "OK" para aplicá-la ao desenho. 23
  • 24.
    3.12 - BLOCKS Aodecorrer do tempo, notamos que alguns trabalhos poderão ser parecidos com trabalhos que você já fez anteriormente. Às vezes você precisa de utilizar uma peça ou um desenho que já utilizou em um outro arquivo. A criação de blocos é uma boa idéia neste caso, se você trabalha com o CAD, uma vez que ele não permite o trabalho com mais de um arquivo ao mesmo tempo. Assim, você poderá montar o que chamamos de "Biblioteca" onde estarão os desenhos que você acha que poderá utilizar em outros projetos. Estes desenhos poderão ser guardados em forma de arquivos ou de blocos. Para construir uma biblioteca em forma de arquivos, basta salvar o desenho com um nome em uma determinada pasta. Sempre que desejar, poderá incluir este desenho, já pronto, em seu arquivo, através do comando Insert Block, que veremos a seguir. Podemos também criar um bloco interno, que será visto somente pelo arquivo onde o bloco foi criado. Vejamos um exemplo de criação de bloco interno: 3.12.1 - CRIANDO O BLOCO 1 - Faça o desenho abaixo com qualquer medida. 2 - Clique no "Make block". botão 3 - Aparecerá a janela Block Definition. 4 - Na caixa "Block Name", escreva Teste que será o nome do bloco. 5 - Na caixa "Base Point" podemos definir um ponto através do qual o objeto será carregado quando for inserido. Clique no botão "Select Point" e logo depois clique no centro dos círculos. (utilize os comandos de precisão). 6 - Clique em "Select Objects" e selecione os dois círculos. Aperte <Enter>. 7 - Clique em "Ok". Está criado o bloco Teste. Obs.: Este bloco só estará habilitado para este arquivo. Outros arquivos não o reconhecerão. Para que outros arquivos reconheçam o objeto, basta salvá-lo com um nome em um diretório específico criado por você. O AutoCAD 2000 permite que o usuário abra vários arquivos ao mesmo tempo. Permite também que elementos de um arquivo sejam selecionados e copiados para outro arquivo facilmente. Trabalhar deste modo é mais fácil do que utilizar blocos. 24
  • 25.
    3.12.2 - INSERINDOO BLOCO 1 - Clique no botão "Insert block". 2 - Aparecerá a caixa "Insert". 3 - Clique no botão "Block" para escolher o nome do bloco. Aparecerá a janela "Defined blocks". 4 - Na janela "Defined blocks", escolha o bloco Teste que foi gravado anteriormente e dê "Ok" para voltar para a janela "Insert". 5 - Clique em "Ok". O objeto aparecerá preso pelo cursor. Na barra de comandos aparecerá: Intersetion point: 6 - Clique na tela para soltar o objeto. Na barra de comandos aparecerá: X scale factor <1>:. O ProgeCAD quer saber qual é o fator de escala para o eixo X. 7 - Aperte <Enter> para aceitar fator de escala 1. Na barra de comandos aparecerá: Y scale factor <default=X>:. O ProgeCAD quer saber se o fator de escala para o eixo Y será igual ao fator informado para o eixo X. 8 - Aperte <Enter> para aceitar fator de escala igual ao do eixo X. Na barra de comandos aparecerá: Rotation angle <0>. O ProgeCAD quer saber se você deseja informar um ângulo de rotação para a figura. 9 - Aperte <Enter> para aceitar o ângulo 0°. O bloco foi inserido. Obs: Para inserir um bloco em forma de arquivo, clique no botão "File" da janela "Insert block" e informe o diretório e o nome do arquivo e depois clique na opção "Ok". Depois siga os passos de 5 a 9. 25
  • 26.
    4 - COMANDOSDE PRECISÃO O trabalho no ProgeCAD exige muita precisão. Não se pode clicar em um ponto, como por exemplo o ponto final de uma linha ou o centro de um círculo, simplesmente confiando em seu olho. O botão ESNAP, mostrado no desenho abaixo, liga e desliga a atração a pontos determinados de um objeto, auxiliando na construção do desenho. Para Acessar a configuração de atração aos pontos do objeto, clique com o botão direito do mouse na opção ESNAP e escolha Settings (em inglês) ou Configurações (em português). Endpoint = ponto final de uma linha Nearest = ponto mais próximo Perpendicular = ponto a 90º do outro Quadrant = ponto que separa os quadrantes de um círculo ou elipse Intersection= interseção entre dois objetos. Cruzamento entre duas linhas. Center = ponto central de um círculo ou arco Midpoint = ponto do meio de uma linha Entre outros. Se você clicar em "Endpoint" e depois em "OK" por exemplo, o seu cursor será atraído para todos os pontos finais dos objetos da tela. Para isto basta aproximar o seu cursor do objeto. Isto somente funcionará se você estiver utilizando algum comando. Para desabilitar ou habilitar a atração, basta apertar a tecla <F3> do teclado. Pode-se ligar a atração do ponto de outra forma, apertando a tecla <shift> + (Botão direito do mouse). Aparecerá uma janela com as opções: endpoint, midpoint, etc.. Escolha a opção que desejar. Ao utilizar o SNAP por este método, a atração funcionará somente uma vez, imediatamente depois da escolha. A atração ao ponto do meio de uma linha é muito útil, mas não vem ligada como padrão no ProgeCAD. Você deve ligá-la manualmente. 26
  • 27.
    4.1 - EXERCÍCIO 01- Escolha "Tools / Object snap settings" 02 - Clique nas opções: endpoint, midpoint, center e intersection e clique em <ok>. 03 - Clique na ferramenta de retângulo e clique um ponto para iniciar o retângulo. 04 - Digite @100,-100 e aperte <Enter> para fazer um quadrado de 100x100mm. 05 - Clique na ferramenta de linha 06 - Aproxime do canto inferior esquerdo deste quadrado. Aparecerá um retângulo amarelo indicando que a atração àquele ponto está ligada. 07 - Dê um clique para iniciar uma linha no canto inferior esquerdo do quadrado. 08 - Aproxime o cursor do canto superior direito do quadrado e dê um clique. A linha está feita. Aperte <Enter> para terminar o trabalho com linhas. 09 - Clique na ferramenta de círculo. 10 - Aproxime o cursor do meio da linha que você criou. Aparecerá um sinal de midpoint. Dê um clique para iniciar o círculo. 11 - Digite 50 quadrado. e depois <Enter> para fazer um círculo de raio 50. Ele estará dentro do O desenho ficará assim: 100 100 Exercício (Utilize os comandos de precisão) R=60 R=60 R=40 R=20 27
  • 28.
    5 - MENUMODIFY OU MODIFICAR Este menu é utilizado para modificar figuras já prontas. 5.1 - ERASE (BORRACHA) Utilizada para apagar objetos na tela. Selecione o(s) objeto(s) e clique em "Modify / Erase" ou escolha o botão correspondente. Pode-se também utilizar a tecla <Delete>. Tudo que estiver selecionado será apagado. 5.2 - COPY (COPIAR) Copia um objeto existente. Para acessar este comando, escolha "Modify / Copy" na barra de menu ou o desenho correspondente. Vamos aprender fazendo um exemplo. 01 - Faça um círculo de raio igual a 50 mm. 02 - Clique no comando copy. 03 - Na barra de comandos aparecerá: Select entities to copy: Selecione o círculo que você fez, clicando em sua linha. Aperte <Enter> para confirmar a seleção. 04 - Na barra de comandos aparecerá: Vector/mode/<Base point>: Clique em um ponto na tela por onde você irá carregar a cópia do objeto. 05 - Na barra de comandos aparecerá: Displacement point: Arraste o mouse e clique em um ponto para deixar a cópia do objeto na tela. Podem ser usadas coordenadas para deixar o objeto em um lugar específico da tela. 5.3 - MIRROR (ESPELHO) Espelha um objeto na tela. Para acessar este comando, escolha "Modify / Mirror" ou o desenho correspondente. Vamos aprender a utilizar o comando fazendo um exercício. 01 - Faça um desenho de qualquer medida, parecido com o desenho abaixo: 02 - Escolha o comando mirror. 28
  • 29.
    03 - Nabarra de comandos aparecerá: Select entities to mirror: Faça uma janela para selecionar os dois objetos que você desenhou. Depois aperte <Enter>. 04 - Na barra de comandos aparecerá: Start of mirror line: Clique no ponto 1 indicado na figura abaixo. 05 - verifique se o botão ORTHO da barra de status está ligado. Se não estiver dê dois cliques nele ou aperte a tecla <F8> para ativá-lo. 06 - Na barra de comandos aparecerá: End of mirror line: Clique no segundo ponto (como mostra a figura) para terminar de construir o espelho. x1 x2 07 - Na barra de comandos aparecerá: Delete the original entities? <N>?. (deletar o desenho antigo?) Responda esta pergunta com Y para sim ou N para não. Se responder não, você terá o objeto e sua imagem espelhada. Se responder sim, você terá somente a imagem. Digite N e <Enter>. O objeto ficará como este: 5.4 – OFFSET OU COPAR Este comando é utilizado para rebater (copiar) linhas paralelamente a uma certa distância. Para trabalhar com ele, basta clicar em "Modify / Offset" ou o botão correspondente. Vamos fazer um exemplo. 01 - Faça uma linha na vertical 02 - Escolha o comando Offset. 03 - Na barra de comandos aparecerá: ENTER for Through point/<Distance>:. O ProgeCAD está pedindo a distância que ele terá que colocar uma linha da outra. Digite 10 para rebater a linha a 10mm e aperte <Enter>. 29
  • 30.
    04 - Nabarra de comandos aparecerá: Select entity: Selecione a linha com um clique para dar o offset. 05 - Na barra de comandos aparecerá: <Side for parallel copy>: Clique no lado direito para que a linha saia a 10 mm deste lado (esta operação também funciona quando clicamos no lado esquerdo do objeto selecionado). 06 - O ProgeCAD continuará pedindo para que você selecione o objeto novamente. Se você quiser continuar com o comando offset, repita os passos 4 e 5 quantas fezes for preciso. Caso não queira mais trabalhar com o comando, aperte <Enter> ou <Esc>. Seu exercício ficará parecido com o desenho mostrado abaixo. 5.5 - ARRAY RETANGULAR OU MATRIZ RETANGULAR Este comando é utilizado para rebater objetos em posições definidas por você. Pode ser de dois tipos. O Array Retangular dispõe os objetos copiados em linhas e colunas, de maneira que sua posição forme um retângulo. O Array Polar dispõe os objetos copiados em forma circular. Para trabalhar como Array, clique em "Modify / Array" ou no botão correspondente. Vamos fazer um exemplo de Array Retangular. 01 - Clique na ferramenta de retângulo. 02 - Na barra de comandos aparecerá: <Select first corner of rectangle>:. Clique na tela para informar o primeiro ponto para o retângulo. 03 - Na barra de comandos aparecerá: Other corner of rectangle or [Dimension/Area]:. O ProgeCAD pede o canto oposto do retângulo. Digite @15,15 e aperte <Enter> para fazer o retângulo. 04 - Clique na ferramenta Array. Aparecerá a caixa de comando do Array, clique em: Object selected: 30
  • 31.
    05 – Apósclicar selecione o objeto e aperte <Enter>. Isso levará para a caixa de comando do Array novamente. 06 - Na barra de comandos aparecerá: Retangular or Polar array:. O ProgeCAD pergunta se você quer fazer um Array retangular ou polar. Clique e aperte <Enter> para informar que você fará array retangular. 07 - Na barra de comandos aparecerá: Rows:. O ProgeCAD pede o número de linhas. Digite 4 e aperte <Enter> para informar que você utilizará 4 linhas com cópias. 08 - Na barra de comandos aparecerá: Coluns: (número de colunas). Digite 6 e aperte <Enter> para informar ao AutoCAD que você fará 6 colunas de cópias. 09 - Na barra de comandos aparecerá: Distance Rows: (distância entre linhas). Digite -25 e aperte <Enter> para que o objeto seja repetido para baixo em uma distância de 25 mm. Para repetir o objeto para cima, informe um valor positivo. 10 - Na barra de comandos aparecerá: Distance Columns: (distância entre colunas). Digite 25 e aperte <Enter> para que o objeto seja repetido para a direita em uma distância de 25 mm. Para repetir o objeto para a esquerda, informe um valor negativo. Será feita uma matriz de 4 linhas e 6 colunas com o objeto que em nosso caso é o quadrado. O desenho ficará parecido com o desenho abaixo. 25mm 15mm 25mm 15mm 31
  • 32.
    5.6 - ARRAYPOLAR OU MATRIZ POLAR Vamos fazer um exemplo de Array Polar. 01 - Clique na ferramenta de círculo. 02 - Na barra de comandos aparecerá: <Center of Circle>: Clique na tela para informar o centro de seu círculo. 03 - Na barra de comandos aparecerá: Diameter <Radius>: O ProgeCAD pede o diâmetro ou o raio para o círculo e diz que o padrão é o diâmetro (ele está entre sinal de menor e maior). Digite 30 e aperte <Enter> para fazer um círculo de raio 30mm. 04 - Faça um retângulo de qualquer medida em cima do círculo de maneira que seu desenho fique parecido com o desenho da figura abaixo. 05 - Clique na ferramenta Array. Na barra de comandos aparecerá: Select Objects:. Clique no retângulo para selecioná-lo e aperte <Enter>. 06 - Na barra de comandos aparecerá: Retangular or Polar array: O ProgeCAD pergunta se você quer fazer um Array retangular ou polar. Clique e aperte <Enter> para informar que você fará array polar. 07 - Na barra de comandos aparecerá: Center point of array:. O ProgeCAD pede o centro onde o retângulo irá rodar. Escolha o comando de precisão center para pegar o centro do círculo (através da tecla F3 ou apertando <Shift> e depois <Enter>) e clique no centro do círculo. 08 - Na barra de comandos aparecerá: Number of elements: (número de elementos). Digite 6 e aperte <Enter> para informar ao ProgeCAD que você fará 6 objetos repetidos. 09 - Na barra de comandos aparecerá: Total Angle <360>: (O objeto será preenchido em 360 graus). Aperte <Enter> 10 - Na barra de comandos aparecerá: Rotate object: (Rodar o objeto quando ele for copiado?). Marque essa opção para informar que sim e aperte <Enter>. O retângulo será repetido 6 vezes em uma circunferência imaginária de centro igual ao centro do círculo. 32
  • 33.
    O seu desenhoficará parecido com o desenho abaixo. 5.7 - MOVE (MOVER) Este comando move objetos de um lugar para o outro. Escolha "Modify / Move" ou o botão correspondente. Para testar este comando você deve ter um ou mais objetos na tela. 01 - Clique no comando Move. 02 - Na barra de comandos aparecerá: Select entities to move: Selecionar a(s) entidades(s) para Mover e aperte <Enter> para confirmar a seleção. 03 - Na barra de comandos aparecerá: Vector/<Base point>: O ProgeCAD pede que você clique em um ponto através do qual o objeto selecionado será carregado. Clique em um ponto. O desenho irá mover-se com o mouse. 04 - Na barra de comandos aparecerá: Displacement point: Clique no ponto para deixar a figura, ou informe o local onde ela ficará através de coordenadas. Pronto. A figura já está em outro lugar. 5.8 - ROTATE (RODAR) Este comando roda objetos na tela. Escolha "Modify / Rotate" ou o botão correspondente. Para testar este comando você deve ter um ou mais objetos na tela. 01 - Clique no comando Rotate. 02 – Selecione o objeto que deseja rodar e pressione a tecla <Enter>. 03 - Na barra de comandos aparecerá: Rotation point: Clique em um ponto para indicar a base (o eixo) da rotação. 04 - Na barra de comandos aparecerá: Base angle/<Rotation angle>: O ProgeCAD pede que você digite o ângulo de rotação. Informe um valor positivo para o sentido contrário ao sentido do ponteiro do relógio. Digite o ângulo e aperte <Enter>. O objeto será rodado de acordo com o ângulo que você informou e com base no ponto que você indicou. 33
  • 34.
    5.9 - SCALE(ESCALA) Para aumentar ou diminuir um objeto, utilizamos o comando Scale. Escolha "Modify / Scale" ou o botão correspondente. Para testar este comando você deve ter um ou mais objetos na tela. 01 - Faça um quadrado de (20 x 20) mm. 02 – Clique neste objeto para selecioná-lo. 03 - Clique no comando Scale. Na barra de comandos aparecerá: Base point: Clique em um ponto que o ProgeCAD irá tomar como base para realizar o comando. Por exemplo, canto superior direito da figura. 04 - Na barra de comandos aparecerá: Scale factor: O ProgeCAD pede que você digite o fator para escala. Se você digitar 2 e apertar <Enter>, o objeto será duplicado. Se você digitar 1/2 e apertar <Enter>, o objeto será reduzido à metade. 05 - Digite o 2 e aperte <Enter>. O objeto ficará com o dobro do tamanho (40 x 40) mmm. 5.10 – TRIM Este comando é utilizado para aparar linhas. Escolha "Modify / Trim" ou o botão correspondente. Para testar este comando você deve construir o desenho abaixo. 01 - Clique no comando Trim. 02 - Na barra de comandos aparecerá: <ENTER to select all>: Selecione o objeto todo e aperte <Enter> para confirmar a seleção. 03 - Na barra de comandos aparecerá: <Select entity to trim>: O ProgeCAD pede que você clique nas linhas que você que excluir. Clique nas sobras (pontas) das linhas. Elas sumirão. Ao final, aperte <Enter> para sair do comando. 34
  • 35.
    O objeto ficarácomo o objeto abaixo. 5.11 - EXTEND (ESTENDER) Este comando estende uma linha até um pondo de outra linha. Escolha "Modify / Extend" ou o botão correspondente. Para testar este comando vamos utilizar o exercício que fizemos anteriormente. Faça uma linha horizontal acima do desenho. Vamos estender todas as linhas verticais até a linha horizontal. 01 - Clique no comando Extend. 02 - Na barra de comandos aparecerá: <ENTER to select all>: Selecione a linha horizontal acima do objeto, que é o lugar onde as linhas verticais irão parar. Aperte <Enter>. 03 - Na barra de comandos aparecerá: <Select entity to extend>: . (Selecione os objetos para estender). Clique em cada uma das linhas verticais e elas se estenderão até a linha horizontal acima do desenho. 35
  • 36.
    5.12 - CHANFER(CHANFRO) Realiza chanfro em duas linhas. Escolha "Modify / Chanfer" ou o botão correspondente. Para testar este comando vamos fazer um quadrado. 01 - Faça um quadrado de lado 60. Clique na ferramenta retângulo, clique em um ponto na tela e digite: @60,-60 . Aperte <Enter>. 02 - Clique no comando chanfer. Na barra de comandos aparecerá: Chamfer (dist1=0, dist2=0): Distance/Settings/Polyline/<Select first entity>: (Selecione a primeira linha). O ProgeCAD está dizendo que você estará fazendo o chanfro informando duas distâncias (dist1 e dist2) e que todas as duas são 10 mm. Se você clicar em uma linha e depois clicar na outra, o Progecad fará um chanfro de 10 mm em cada linha que você clicou. 03 - Para mudar a distância do chanfro, digite a letra "D" de Distance e aperte <Enter>. 04 - Na barra de comandos aparecerá: Chamfer distance on first entity <0>: . Informe a primeira distância para o chanfro. Digite 30 e aperte <Enter>. 05 - Na barra de comandos aparecerá: Chamfer distance on second entity <30>: Informe a segunda distância para o chanfro. Digite 30 e aperte <Enter>. 06 - Na barra de comandos aparecerá: <Select first entity>: O ProgeCAD está pedindo que você selecione as entidades. 07 - Clique na primeira linha e depois na segunda linha (indicadas com um X no desenho abaixo e à esquerda). Quadrado sem chanfro. X X 36
  • 37.
    Quadrado com chanfro.Resultado final. 5.13 – FILLET Arredonda cantos ou quinas formados por duas linhas. Escolha "Modify / Fillet" ou o botão correspondente. Para testar este comando vamos fazer um quadrado. 01 - Faça um quadrado de lado 60. Clique na ferramenta retângulo, clique em um ponto na tela e digite: @60,-60 . Aperte <Enter>. 02 - Clique no comando Fillet. 03 - Na barra de comandos aparecerá: Fillet (radius=0): Radius/Settings/Polyline/<Select first entity>: O ProgeCAD diz que o raio do fillet é de tamanho padrão 0mm. 04 - Digite "R" de Radius para trocar o raio do fillet e aperte <Enter>. 05 - Na barra de comandos aparecerá: Fillet radius <0>: Digite 30 <Enter>. e aperte 07 - clique nos dois lados para formar o fillet, na barra de comandos aparecerá: Directional/Select second entity: Solicitando que você clique na outra direção. O objeto ficará parecido com o objeto mostrado abaixo. 37
  • 38.
    5.14 – EXPLODE Quandodesenhamos um quadrado, retângulo ou um polígono que é feito com polilinha, as linhas ficam agrupadas. Elas não se comportam como objetos separados. Às vezes, isto atrapalha o desenho. Assim, temos que explodir estas figuras para trabalharmos com cada linha em separado. Para isto, utilizamos a ferramenta Explode. Para trabalhar com o Explode, escolha "Modify / Explode" ou o botão correspondente. Para testar este comando vamos fazer um quadrado. 01 - Faça um quadrado de lado 80. Clique na ferramenta retângulo, clique em um ponto na tela e digite: @80,-80 . Aperte <Enter>. 02 - Clique neste quadrado. Observe que todas as linhas são selecionadas. 03 - Clique no comando Explode. E todas as linhas já se tornam independentes umas das outras. 04 - Clique novamente no quadrado e você verá que as linhas podem ser selecionadas separadamente. 38
  • 39.
    Exercício - Façaas figuras abaixo comas medidas indicadas. Figura 1 Figura 2 39
  • 40.
    Figura 3 20 30 5 30 30 20 50 30 5 60º 11,5 6 –DIMENSIONANDO O DESENHO A barra de ferramentas de dimensão não aparece como padrão quando o ProgeCAD é instalado. Para fazer com que a barra de dimensionamento seja mostrada, clique na opção “View” ou visualizar que fica na barra de menus e depois clique em “Toolbars” ou barras de ferramentas. Clique na opção “Dimension”. Quando a barra de ferramentas dimension aparecer, Arraste-a para o lugar desejado. A dimensão também pode ser chamada de COTA. Para realizar o dimensionamento em um trabalho temos que utilizar as opções do menu dimension da barra de menus ou utilizar a barra de ferramentas dimension. Para utilizar a barra dimension, clique em "View / toolbars" e clique no quadrado da palavra "Dimension", para que a barra apareça. Arraste esta barra para o lugar que você desejar. Deste ponto em diante você precisará utilizar os comandos de precisão. Qualquer dúvida, veja as anotações anteriores que falam sobre este assunto. 6.1 - LINEAR DIMENSION (DIMENSÃO LINEAR) Mostra a dimensão de uma linha vertical ou horizontal. Escolha "Dimension / Linear" ou o botão correspondente. Para testar este comando vamos fazer um quadrado. Você precisará utilizar os comandos de precisão. Aperte a tecla <F3> para configurar os comandos de precisão. Clique nos quadrados: Endpoint, Midpoint, Center e Intersection, para que o cursor seja atraído para estes pontos e clique em <Ok>. 01 - Faça um quadrado de lado 30. Clique na ferramenta retângulo, clique em um ponto na tela e digite: @30,-30 . Aperte <Enter>. 02 - Clique no comando "Linear dimension". 40
  • 41.
    30 Na barra decomandos aparecerá: ENTER to select entity/<Origin of first extension line>: O ProgeCAD pede para você clicar em um ponto para iniciar a medição. 03 - Aproxime o cursor da quina do quadrado. Aparecerá a marca de precisão (Endpoint). Clique nesta quina. Na barra de comandos aparecerá: Origin of second extension line:. Segundo ponto da medição. 04 - Aproxime-se da segunda quina. Aparecerá a marca de precisão (Endpoint). Clique neste segundo ponto. Na barra de comandos aparecerá: Orientation of dimension line:. Você terá que informar a posição onde a linha com a medida vai ficar. 05 - Arraste o cursor e clique em um ponto para deixar a linha com a medida naquela posição. O número 30 é a anotação da cota. A linha da cota possui duas setas nas extremidades. As linhas horizontais são as linhas de chamada da cota. 6.2 – ALTERANDO A DIMENSÃO NO PROGECAD Quando escolhemos a opção “Format / Dimension Style” no ProgeCAD, aparece a janela do gerenciador de estilo de dimensão. 41
  • 42.
    No ProgeCAD, sempreque você realiza uma modificação, ela se reflete em todo o desenho. Clicando no botão “Dimension Style” você pode realizar alterações do estilo da dimensão, assim que a janela aparecer clique no botão <New> aparecerá <New Dimension style> e crie um nome para seu padrão de dimensão. 42
  • 43.
    6.2.1 – LINES(LINHAS DE COTA) 20 20 20 Na aba Lines (linha de dimensão) você encontrará as opções: Center Mark size: altera a dimensão da marcação do ponto de centro de curvas. Offset from Baseline: define a distância entre uma linha de cota e outra. Origin: define um espaço entre o desenho e o início da linha de extensão. Extend Lines Past Dimensions : especifica o quanto a linha de extensão irá ultrapassar à linha da cota. Dimensions Lines Linweight: troca a espessura da linha de dimensão. Select color: troca a cor da linha de dimensão. Extensions Lines Linweight: modifica a espessura da linha de extensão. Select color: modifica a cor da linha de extensão. Supress outside dimension lines: esconde a primeira ou a segunda metade da linha se for preciso. 43
  • 44.
    C 20 Linha de extensão D 6.2.2– ARROWS OU PONTA DA SETA Agora estamos na guia de nome Símbolos e setas. Define o tamanho e a forma das pontas da linha de dimensão. 20 20 A opção mais importante utilizada desta guia é: Todas as vezes que desejar trocar especificações das cotas, o usuário deverá alterar este valor, de forma proporcional aos valores mencionados na guia de Linhas, esta guia altera os tamanhos dos símbolos utilizados (SETA). 44
  • 45.
    6.2.3 – TEXTOU TEXTO As opções mais importantes desta guia de texto são: Altura de texto e Deslocar a partir da linha de cota (marcadas acima) Opções que devemos trocar para alterar as cotas: Guia de Linhas: Extender além das linhas de cota (extend beyond dimension lines). Deslocar da origem (offset from origin). Guia de Símbolos e setas Tamanho da seta (arrow size). Guia de texto: Altura de texto (text height). Deslocar a partir da linha de cota (offset from dim lines). Ao terminar de escolher a configuração ideal, clique no botão “Ok”. Você voltará à tela “Dimension style manager”. Clique no botão “Close” desta tela. Todas as configurações de cota serão trocadas automaticamente. 45
  • 46.
    7 – LAYERSOU CAMADAS Layers são camadas criadas para facilitar a organização dos trabalhos no ProgeCAD. Todo trabalho realizado no ProgeCAD é feito pelo menos em uma layer que é a "layer 0" (Zero). Ao criarmos outras camadas, estaremos simulando o trabalho com papéis transparentes que serão sobrepostos para formar o desenho. A idéia é criar várias camadas para contorno, preenchimento, hachura, cota, etc. Dependendo do tipo de trabalho, o usuário poderá criar nomes diferentes para as camadas, como por exemplo: parede, esquema elétrico, portas e janelas, esquema hidráulico, máquinas, área de risco e outros. Trabalharemos com contorno somente na camada de contorno. Uma layer pode ser desabilitada para visualização ou pode ser travada para que não se possa mexer nela. Obs.: Antes de iniciar este exercício, crie um novo arquivo e salve com o nome de Padrão. Este arquivo irá conter sempre as layers que você vai precisar para realizar seus trabalhos. Criaremos as layers a seguir Nome Contorno Contorno não visível Cota Hachura Texto Centro Corte Cor Azul claro (cyan) Azul escuro Vermelho Rosa Branco Verde Amarelo Tipo de linha Contínua Tracejada Contínua Contínua Contínua Traço-ponto Traço-ponto Espessura 0.4000 mm 0.1000 mm 0.0500 mm 0.1000 mm 0.4500 mm 0.0500 mm 0.3000 mm 46
  • 47.
    Vamos criar nossaslayers para realizar os trabalhos daqui em diante. 01 - Clique no botão Layers ou Camadas. Aparecerá a janela Layer & linetype properties ou Gerenciador de propriedade de camadas. 02 - Clique no botão "New" ou novo para criar uma nova layer. Aparecerá o nome "layer1". Escreva "Contorno" e pressione <ENTER>. Clique no quadrado que indica cor da camada e escolha a cor azul claro (da caixa Standard Color) e depois escolha "Ok". A palavra continuous indica que esta linha será contínua. Está criada a layer de "Contorno". 03 - Clique novamente botão "New". Aparecerá o nome "layer1". Escreva "ContornoNaoVisivel" e pressione <ENTER>. Clique no quadrado de cores e escolha a cor azul escuro e depois clique em "Ok". Clique na palavra Continuous. Aparecerá a janela para escolher tipos de linhas. Só existe a linha contínua. Temos que carregar a linha tracejada. Clique no botão "Load" ou Carregar e clique na primeira linha tracejada (Ex.: Acad_iso02w100). Clique em "Ok". Clique na linha tracejada. Clique em "Ok". Está criada a layer de Contorno não visível. 04 - Clique no botão "New" ou Novo. Aparecerá o nome "layer1". Escreva "Cota". Clique no quadrado de cores e escolha a cor vermelha e depois clique em "Ok". A palavra continuous indica que esta linha será contínua. Está criada a layer de "Cota". 05 - Clique no botão "New" ou Novo. Aparecerá o nome "layer1". Escreva "Hachura". Clique no quadrado de cores (depois do cadeado) e escolha a cor "rosa" e depois clique em "Ok". A palavra continuous indica que esta linha será contínua. Está criada a layer de "hachura". 47
  • 48.
    06 - Cliqueno botão "New" ou Novo. Aparecerá o nome "layer1". Escreva "Texto". Clique no quadrado de cores e escolha a cor branca e depois clique em "Ok". A palavra continuous indica que esta linha será contínua. Está criada a layer de "Texto". 07 - Clique no botão "New" ou Novo. Aparecerá o nome "layer1". Escreva "Centro". Clique no quadrado de cores e escolha a cor verde e depois clique em "Ok". Clique na palavra Continuous. Temos que carregar a linha Traço-Ponto. Clique na primeira linha Traço-ponto que encontrar (Ex.: Acad_iso04w100). Clique em "Ok". Clique novamente na linha Traço-ponto para selecioná-la. Clique novamente em "Ok". Está criada a layer de Centro. 08 - Clique no botão "New". Aparecerá o nome "layer1". Escreva "Corte". Clique no quadrado de cores (depois do cadeado) e escolha a cor amarela e depois clique em "Ok". Clique na palavra Continuous. Clique na linha traço-ponto para escolhê-la. Clique em "Ok". Está criada a layer de Corte. 09 - Clique em Ok na janela de "Layer & Linetype properties" 10 - Salve o arquivo. Ao final, a janela ficará como o desenho abaixo: Obs.: Ao criar um arquivo novo, todo este procedimento terá que ser feito novamente porque o arquivo novo só possui a layer 0 (zero). Por isto criamos o arquivo padrão. Este é apenas um exemplo. Crie quantas camadas precisar com o nome que lhe for mais conveniente. A camada de nome DEFPOINT será criada pelo ProgeCAD automaticamente. Todos os objetos colocados nesta camada, não serão impressos. 48
  • 49.
    7.1 - EXERCÍCIODE UTILIZAÇÃO DE LAYERS 01 - Abra a página padrão (se ela não estiver aberta). 02 - Salve como Exercicio layers. 03 - Clique na caixa "Layer Control" (Desenho acima) e clique na layer de "Contorno". 04 - Desenhe um círculo de raio 40. O círculo ficará da cor azul e linha contínua. 05 - Clique na caixa "Layer Control" e clique na layer de "Cota". 06 - Clique no botão radius dimension para medir o círculo. 07 - Clique na linha do círculo. Aparecerá a medida do raio com a linha contínua e vermelha. 08 - Clique novamente na caixa "Layer Control". 09 - Clique no desenho da lâmpada do Contorno. A lâmpada irá se apagar indicando que o contorno não poderá ser visto nem impresso. Vamos habilitar novamente o contorno. 10 - Clique na caixa "Layer Control". 11 - Clique no desenho da lâmpada do Contorno. A lâmpada irá se ascender indicando que o contorno poderá ser visto e impresso novamente. 7.2 - EXERCÍCIO - FIGURAS Faça as figuras abaixo Figura 1 Figura 2 49
  • 50.
  • 51.
    8 - ESCALA Muitasvezes precisamos aumentar ou diminuir o desenho, utilizando uma escala definida. Quando aumentamos o desenho 10 vezes para que ele seja melhor visualizado, ele está em escala 10:1, ou seja, cada 10 unidades do desenho equivale a 1 unidade do tamanho real. Quando diminuímos o desenho 100 vezes, por exemplo, para que ele caiba no papel, dizemos que ele está em escala 1:100. Cada 1 unidade do desenho equivale a 100 unidades do tamanho real. Vamos ver o exemplo a seguir. Exercício de Escala 1 - Desenhe um círculo de raio 35 mm. 2 - Você terá que cotar este círculo. Ele ficará assim: 35 3 - Clique no botão "Scale". Na barra de comandos aparecerá: Select entities to scale:. O ProgeCAD pede para você selecionar os objetos para a escala. 4 - Selecione todo o círculo juntamente com a medida e pressione <Enter>. Na barra de comandos aparecerá: Base point:. O ProgeCAD pede o ponto que usará como base para aumentar o objeto. 5 - Clique no centro do círculo. Na barra de comandos aparecerá: <Scale fator> / Reference:. O ProgeCAD pede o fator de ampliação ou de redução. Obs: para aumentar 10 vezes é preciso informar o valor 10. Para diminuir 10 vezes é preciso informar o valor 1/10. 6 - Digite 2 e aperte <Enter> para aumentar o desenho duas vezes. O desenho terá o dobro do tamanho. 8.1 - PROBLEMA COM A ESCALA NO PROGECAD Se uma escala for aplicada a um desenho já cotado poderemos ter problemas. Quando o círculo aumentou 2 vezes, a medida (35mm) também aumentou 2 vezes (70mm). Isto é errado. Para que a medida continue 35mm, mesmo depois de termos dobrado o desenho, temos que fazer a operação a seguir. 51
  • 52.
    Se você aplicouuma escala de ampliação e dobrou o seu desenho propriamente dito (na aba MODEL), as cotas do desenho também serão dobradas. Para fazer com que as cotas mostrem a metade do valor que estão mostrando siga os passos abaixo. 1 – escolha a opção “Format / Dimension Style” na barra de menus do ProgeCAD. Aparecerá a janela “Dimension style manager”. 2 – Clique na aba de nome “Units”. Aparecerá a janela abaixo: 4 – Observe a caixa “Scaling”. O valor da caixa de nome “Liner diemnsioning scale factor” é 1. Para fazer com que as cotas mostrem a metade do valor que estão mostrando, escreva o valor 1/2 nesta caixa. Obs.: Você sempre aplica o valor inverso da escala que você aplicou ao desenho. Se você ampliou o desenho 100 vezes, você terá que colocar o valor 1/100 na caixa “Liner diemnsioning scale factor”. 52
  • 53.
    9 – IMPRIMINDOUM ARQUIVO NO PROGECAD. O trabalho de impressão é um pouco complicado, mas se você seguir as instruções passo a passo, como uma receita de bolo, o processo todo torna-se automático. Toda peça é construída na Guia de nome MODEL mostrada na parte inferior esquerda da janela do ProgeCAD. Veja o desenho abaixo. Para realizarmos a impressão, é preciso que se tenha algum desenho feito na tela. Vamos utilizar o desenho abaixo como exemplo. O desenho é apenas ilustrativo. 9.1 – CONFIGURANDO A PÁGINA DE IMPRESSÃO Na guia Layout1 você poderá montar a sua página de impressão. Esta página pode ter o tamanho A4, A3, A2, A1 ou A0. Você define o tamanho da página. O mesmo acontece na guia Layout2. Sendo assim, você poderá ter formatos diferentes de página para imprimir o mesmo desenho. No ProgeCAD 2010, ao clicar em uma guia pela primeira vez, uma página é criada sem que você possa escolher qual é o formato. Normalmente ela vem com o formato A4. Para modificar o formato da página, clique <File> na guia escolha a opção “Print setup”. 53
  • 54.
    9.2 – GERENCIADORDE IMPRESSÃO DE PÁGINA Vamos entender as configurações da guia Layout1 1 – Clique na guia Layout1. Aparecerá a janela de nome Page Setup manager ou Gerenciador de configuração de página. Na parte inferior esquerda desta janela existe a opção “Exibir ao criar novo layout. Se esta opção estive marcada, esta janela sempre aparecerá quando você clicar na guia Layout pela primeira vez. Clique no botão “modificar” para escolher as configurações da página a ser criada. Aparecerá a janela de configuração de página mostrada a seguir. 54
  • 55.
    9.3 – CONFIGURAÇÃODE PÁGINA. 1 – O ProgeCAD condensa todas as informações sobre configuração de página e impressão em uma única tela. 2 – A opção “Printer” mostra o nome da impressora sua impressora. Somente um trabalho desenvolvido em uma folha tamanho A4 poderá ser impresso em uma impressora do formato A4 (210 x 297) mm. Qualquer formato maior que este (A3, A2, A1 ou A0) deverá ser impresso em impressoras maiores em locais especializados neste tipo de serviço. Se precisar de configurar sua impressora, clique no botão “Propriedades”. 3 – A opção “Paper” (ou papel), mostra o tamanho que terá sua página de impressão. Clique na seta e escolha o formato desejado. Se você não possui impressora ou possui somente uma impressora A4, mesmo assim poderá realizar trabalhos maiores e enviar para impressão em outro local. Já sabemos que, ao final do processo de configuração de página, o ProgeCAD dará uma página em branco contendo todo o seu desenho em escala desconhecida. A segunda maneira de se preparar a impressão é montar todo o trabalho de impressão (limites da página, margens legenda e desenhos) fora desta página criada pelo programa. 55
  • 56.
    Com esta formade trabalho, utilizamos somente um Layout, desprezamos a página de impressão criada pelo ProgeCAD e criamos outras páginas fora da área de impressão que serão escolhidas pelo botão “janela”. Veja um exemplo: se você precisar de criar 10 páginas para imprimir o desenho, você poderá trabalhar com apenas um layout e dentro deste layout você cria 10 cópias de uma página A4, já preparada com suas margens e com sua legenda. Dentro destas páginas você poderá inserir as partes do desenho a ser impresso, identificando cada desenho na sua legenda correspondente. 4 – Na caixa “Scale/View” verifique se a escala exibida é 1:1 . Sempre utilizaremos esta opção 1:1. Isto indica que a página montada será impressa do tamanho que foi montada. Nem menor nem maior. No próximo passo, iremos configurar com que cor e espessura serão impressas as linhas que estamos utilizando no nosso desenho. 9.4 – APLICANDO UMA ESCALA AO DESENHO PARA IMPRESSÃO Ainda temos um problema. Apesar de o ProjeCAD já apresentar uma visão do desenho para você, não sabemos qual é a escala aplicada a esta visualização. Verifique a barra de Status. Ela deve estar mostrando o botão “M:Layout2”. Clique neste botão para trocá-lo para “P:Layout2” (como indica a figura abaixo). 2 – Digite Z e pressione <Enter>. (digitando Z você acionará o comando Zoom). 3 – Neste caso, a escala será aplicada não no desenho, mas sim na visão do desenho. O tamanho do desenho que você fez não altera. O que altera é o tamanho da sua visualização. Lembrem-se de que nós não estamos trabalhando na guia Model. Estamos trabalhando na guia de nome Layout. 4 – Neste momento, você já deve saber qual é a escala que você deseja aplicar ao desenho. Digite o valor da escala seguido das letras XP, tudo sem espaço e pressione <Enter>. Veja o quadro abaixo Escala Natural Ampliação Ampliação Redução Fator Digite O desenho da visão ficará Mesmo tamanho Do tamanho que foi criado na guia do desenho 1XP Model. Duas vezes maior 2XP Com o dobro do tamanho que foi criado na guia Model. Dez vezes maior 10XP Dez vezes maior do que o desenho criado na guia Model. Dez vezes menor 1/10XP Dez vezes menor do que o desenho criado na guia Model. 56
  • 57.
    Redução Redução Quinze vezes 1/15XP Quinzevezes menor do que o menor desenho criado na guia Model. Cinquenta vezes 1/50XP Cinquenta vezes menor do que o menor desenho criado na guia Model. A letra X significa “vezes”. Ex: 1x significa uma vez. 2x significa duas vezes. A letra P obriga o AutoCAD a pegar o tamanho do desenho construído lá na guia Model. Portanto, 1/10XP para o ProjeCAD significa que ele tem que mostrar (na visão que você está trabalhando) o desenho dez vezes menor com relação ao desenho que você fez lá na guia Model. Como já foi dito, você deve calcular o quanto o desenho deve diminuir ou aumentar para que ele caiba dentro da visão que você está criando. 57
  • 58.
    9.5 - ALTERANDOO TAMANHO DA CAIXA DA VISÃO No desenho acima temos muito espaço perdido na página. Para diminuir o espaço da caixa da visão, siga os passos abaixo. 1 – Na barra de status não pode estar sendo exibido o botão “MODEL”. Se isto acontecer, clique neste botão para que ele mude para “PAPER”. 2 – Clique na linha da visão. A visão será selecionada. Clique no canto superior esquerdo da visão (Ponto1), arraste até o Ponto 2 e dê outro clique. Clique no canto inferior esquerdo da visão (Ponto3), arraste até o Ponto4 e dê outro clique. Sua visão ocupa agora menos espaço na página. Ponto1 X Ponto2 X Ponto4 X Ponto3 X Se o desenho aparecer cortado, verifique se a visão está adequada para exibilo. Caso esteja, você poderá aumentar a área da visão, realizando a operação contrária à que foi descrita no passo anterior. A visão se comporta como um objeto. Sendo assim, você poderá movê-la com o comando “Move” do menu “Modify”. Poderá também criar cópias ou apagar. 58
  • 59.
    9.6 - ESCREVENDODENTRO DAS VISÕES Na barra de status não pode estar sendo exibido o botão “M:Layout1”. Se isto acontecer, clique neste botão para que ele mude para “P:Layout1”. Fazendo isto, tudo que você escrever aparecerá somente no papel de impressão. Escreva qualquer observação normalmente com a ferramenta de texto do Menu de desenhos. 9.7 - CRIANDO NOVAS VISÕES DO DESENHO Você pode criar outras visões desta peça na página, para detalhar melhor seu desenho. Vamos criar uma visão da peça dentro da página que você desenhou. Lembre-se de verificar se você se encontra no ambiente de impressão “Layout”. Siga os passos abaixo. Importante: Observe a layer ou camada que você está utilizando. A visão a ser criada terá a mesma layer. Normalmente, escolhemos a Layer ou camada de nome Defpoints, porque esta camada não é impressa e a linha da visão não se confunde com as linhas do desenho. 1 – Clique na opção “View ou visualizar” existente na barra de menus do ProjeCAD (parte superior do vídeo). 2 – Leve o mouse até a opção Viewport. Você está prestes a criar uma visão flutuante do desenho dentro da sua página. 3 – Escolha a opção “1 Viewport”. Na barra de comandos aparecerá a mensagem: ...First corner. O ProjeCAD pede para que você marque o primeiro ponto para que ele crie a visão do desenho para você. 4 – Clique na indicação “Ponto 1” mostrada no desenho acima. Na barra de comandos aparecerá a mensagem: Opposite corner:. O ProjeCAD pede um outro ponto para que ele termine de formar a visão do desenho. Clique no “Ponto 2”. X Ponto 1 X Ponto 2 Visto: Arqui o: v Data: Em substituição Escala: Substituído Senai Folha: Título: Visto: Arqui o: v Data: Em substituição Escala Substituído Senai Folha: Título: 59
  • 60.
    Uma Viewport (visão)é criada e o desenho é mostrado dentro da página de impressão. Como foi dito anteriormente, esta visão possui uma linha de delimitação que deve ser escondida. Lembre-se sempre de aplicar a layer Defpoints à visão. Quando a visão é inserida na página, não conseguimos trabalhar com a peça que estamos visualizando. Ao tentarmos selecionar os elementos desenhados, somente o quadro da visão é selecionado. Isto acontece porque estamos com o foco de trabalho na página de impressão e não na peça. Para trabalhar com a peça, mesmo estando trabalhando no ambiente de impressão, dê um clique duplo no botão “P:Layout1” mostrado na barra de Status, que fica na parte inferior da tela do Windows. Este botão alterará sua exibição para “M:Layout1” (MODEL) e você poderá trabalhar com o desenho propriamente dito. Se desejar, dê dois cliques dentro da visão para obter o mesmo resultado. Qualquer alteração feita na visão, enquanto estiver aparecendo a indicação “M:Layout1” (MODEL) na barra de status, irá afetar a peça. Para voltar para a condição de Paper, Dê dois cliques fora da visão ou clique na palavra “P:Layout1” (PAPEL) abaixo e à direita para que ela vire Paper. 60
  • 61.
    9.8 – CONSTRUÇÃODE LAYOUTS DE PÁGINA Todo desenho deve ser apresentado dentro de um espaço apropriado com uma legenda que forneça os dados necessários à sua identificação, ao seu controle e ao seu entendimento. No layout Abaixo podemos observar o desenho de uma página no formato A4 (210x297)mm com legenda e as respectivas medidas. Crie uma padronização de folhas para o seu trabalho, observando as normas de desenho técnico. Esta folha que irá conter o desenho deve ser feita no modo de impressão ou Layout do AutoCAD. Observe o desenho abaixo: Visto: Data: Em substituição a: Escala: Substituído por: Senai Arquivo: Folha: Título: 61
  • 62.
    9.9 – FORMATOSDE PAPEL O ProjeCAD oferece as guias de nome Layout com a página que será impressa, mas não oferece um desenho de layout pronto. Observamos que cada guia (Layout1, Layout2, Layout3 etc.) possui apenas uma página em branco. Você pode utilizar este espaço desta página em branco ou o espaço em torno dele para construir os layouts. Você pode construir várias páginas para impressão no mesmo layout e, posteriormente, pode escolher qual delas deseja imprimir. Você deve construir o formato da página, com margens e legenda. Utilize elementos como linha, retângulo, texto etc. e construa sua página da maneira que desejar. Padronize esta página para todos os trabalhos que for realizar na empresa. Coloque as visões nas escalas que for preciso de maneira que elas identifiquem bem o desenho a ser impresso. Crie o número de visões que for necessário para representar o desenho. Formato A4 Medida do papel: 210 x 297 mm. Margem esquerda: 25 mm. Outras margens: 7 mm Medida da legenda: 90 x 25 ou 120 x 35 mm. Formato A3 Medida do papel: 4210 x 297 mm. Margem esquerda: 25 mm. Outras margens: 10 mm Medida da legenda:120 x 35 mm. As dobras estão mostradas com linha tracejada. A legenda deve aparecer depois de efetuadas as dobras. 62
  • 63.
    Formato A2 Medida dopapel: 594 x 4210 mm. Margem esquerda: 25 mm. Outras margens: 10 mm. Medida da legenda:120 x 35 mm ou 175 x 50 mm. As dobras estão mostradas com linha tracejada (observar as medidas). A legenda deve aparecer depois de efetuadas as dobras. 63
  • 64.
    Formato A1 Medida dopapel: 841 x 594 mm. Margem esquerda: 25 mm. Outras margens: 10 mm. Medida da legenda: 175 x 50 mm. As dobras estão mostradas com linha tracejada (observar as medidas). A legenda deve aparecer depois de efetuadas as dobras. 64
  • 65.
    Formato A0 Medida dopapel: 1189 x 841 mm. Margem esquerda: 25 mm. Outras margens: 10 mm. Medida da legenda: 175 x 50 mm. As dobras estão mostradas com linha tracejada (observar as medidas). A legenda deve aparecer depois de efetuadas as dobras. 65
  • 66.
    9.10 - IMPRIMINDOO DESENHO Para imprimir o desenho, você deve estar dentro da guia “Layout”. Seu layout já deverá estar previamente configurado. Assim sendo, clique no botão Print ou plotar. Você pode escolher “File ou arquivo” e depois “Plot” no menu do ProjeCAD. Aparecerá a janela de impressão. Verifique se aparece corretamente o nome da sua impressora. Verifique se o tamanho do papel está correto: A4, A3 etc. A escala é sempre 1:1. Isto indica que o desenho será impresso do mesmo tamanho que foi montado por você. Escolha a opção mm se você não trabalha com polegadas. 66
  • 67.
    Clique no botãoVisualizar ou View para ver como a impressão vai sair. Clique em Ok para imprimir o desenho. 67
  • 68.
    Exercício – PinoRecartilhado Exercício - Grelha 68
  • 69.
    Exercício - PlacaBase Exercício - Disco 69
  • 70.
    Exercício - Peça1 A CORTE A Exercício - Peça 3 70
  • 71.
  • 72.
    Exercfcio- Eixo 32 0. .... 3x45• 3x45• 8 8 I /I 'l// k 16 W;//// .. .... 20 30 j ///// .... 10 / ' 32 3 16 22 6 21 72