Componentes do Desenho Arquitetônico
FAU - UniNilton Lins
Introdução ao Estudo do Habitat
A Linguagem do Arquiteto
PDF created with pdfFactory trial version www.pdffactory.com
TÓPICOS
1- Normas;
2- Desenhos utilizados na representação dos
projetos de edificações;
3- Tipos e linhas empregadas;
4- Cotagem e referências de nível;
5- Hachuras específicas;
6- Folhas de desenho;
7- Escalas;
8- Folhas para representação dos desenhos;
9- Glossário (termos usados).
PDF created with pdfFactory trial version www.pdffactory.com
1- NORMAS A CONSULTAR
NBR 6492/94 – Representação de projetos de
arquitetura;
NBR 8196/99 – Emprego de escalas;
NBR 8403/84 – Aplicações de linhas – tipos e
larguras;
NBR 10068/87 – Folha de desenho – leiaute e
dimensões;
NBR 13142/99 – Dobramento e cópia.
PDF created with pdfFactory trial version www.pdffactory.com
2- DESENHOS UTILIZADOS NA REPRESENTAÇÃO DOS
PROJETOS ARQUITETÔNICOS DE EDIFICAÇÕES
¢ Planta de situação;
¢ Planta de localização;
¢ Planta baixa;
¢ Cortes longitudinais e transversais;
¢ Fachadas;
¢ Desenhos de detalhes;
¢ Outros;
PDF created with pdfFactory trial version www.pdffactory.com
PLANTA DE SITUAÇÃO
A planta de situação deve conter:
¢ Curvas de nível;
¢ Indicação do norte;
¢ Vias de acesso;
¢ Indicações de área;
¢ Denominação dos edifícios;
¢ Construções existentes, demolições ou
remoções futuras, área não edificáveis;
¢ Escalas;
¢ Notas gerais e legenda;
PDF created with pdfFactory trial version www.pdffactory.com
PLANTA DE SITUAÇÃO
PDF created with pdfFactory trial version www.pdffactory.com
PLANTA DE LOCALIZAÇÃO
¢ A planta de localização deve conter:
¢ Sistemas de coordenadas referenciais e curvas de nível;
¢ Indicação do norte;
¢ Vias de acesso, vias internas, estacionamento e área
coberta;
¢ Perímetro do terreno, limites, cotas gerais e níveis
principais;
¢ Indicações dos limites externos: recuos e afastamentos;
¢ Denominação dos edifícios;
¢ Amarrações dos eixos do projeto a um ponto de referencia;
¢ Notas gerais, desenhos de referencia e legenda;
¢ Escalas.
PDF created with pdfFactory trial version www.pdffactory.com
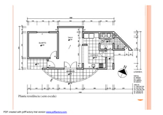
PLANTA BAIXA
Plantas baixas são cortes em cada pavimento através de
planos horizontais imaginários situados em um altura entre
a verga da porta e o peitoril da janela;
¢ Demarcação das paredes;
¢ Projeção dos beirais;
¢ Posição e dimensões das esquadrias;
¢ Representação das louças sanitárias;
¢ Representação dos quadriculados
representativos de “pisos frios”;
¢ Representação dos textos e cotas;
PDF created with pdfFactory trial version www.pdffactory.com
PLANTA BAIXA
PDF created with pdfFactory trial version www.pdffactory.com
CORTES
Os cortes devem conter:
¢ Eixos do projeto;
¢ Elementos estruturais;
¢ Cotas verticais;
¢ Cotas de nível;
¢ Fechamento interno e externo;
¢ Circulações verticais e horizontais;
¢ Cobertura / telhado;
¢ Forros;
¢ Denominação dos vários compartimentos;
¢ Notas de referencia;
¢ Marcação dos cortes;
¢ Escalas;
PDF created with pdfFactory trial version www.pdffactory.com
CORTES
PDF created with pdfFactory trial version www.pdffactory.com
CORTE
PDF created with pdfFactory trial version www.pdffactory.com
3- TIPOS E ESPESSURA DE LINHA EMPREGADOS
ESTREITA, MÉDIA, LARGA, TRACEJADA, TRAÇO-DOIS-PONTOS,
...
¢ Transmitem informações sobre os elementos que estão
representando;
Linhas largas: elementos estruturais ou de alvenaria
cortados pelo plano de corte;
Linhas médias: elementos leves cortados pelo plano
de corte;
Linhas estreitas: arestas e contornos aparentes, não
cortados pelo plano de corte;
PDF created with pdfFactory trial version www.pdffactory.com
PDF created with pdfFactory trial version www.pdffactory.com
PDF created with pdfFactory trial version www.pdffactory.com
4- COTAGEM E REFERENCIAS DE
NÍVEL
PDF created with pdfFactory trial version www.pdffactory.com
COTAGEM DE ESQUADRIAS
PDF created with pdfFactory trial version www.pdffactory.com
PDF created with pdfFactory trial version www.pdffactory.com
5- HACHURAS ESPECÍFICAS
PDF created with pdfFactory trial version www.pdffactory.com
PDF created with pdfFactory trial version www.pdffactory.com
6- ESCALAS USUALMENTE ADOTADAS
PDF created with pdfFactory trial version www.pdffactory.com
ESCALAS
O escalímetro é um instrumento de desenho técnico utilizado para desenhar objetos em escala ou facilitar a
leitura das medidas de desenhos representados em escala. Podem ser planos ou triangulares, como o apresentado
na figura.
O escalímetro, escala ou régua triangular, é dividido em três faces, cada qual com
duas escalas distintas. Pode-se, nesse caso, através da utilização de múltiplos ou
submúltiplos dessas seis escalas, extrair um grande número de outras escalas.
O escalímetro convencional utilizado na engenharia e na arquitetura é aquele que
possui as seguintes escalas 1:20; 1:25; 1:50; 1:75; 1:100; 1:125.
Cada unidade marcada nas escalas do escalímetro correspondem a um metro. Isto
significa que aquela dada medida corresponde ao tamanho de um metro na escala
adotada.
Ex.: A escala gráfica correspondente a 1:50 é representada por segmentos iguais de
2cm, pois 1 metro/50= 0,02 = 2cm.
PDF created with pdfFactory trial version www.pdffactory.com
ESCALAS UTILIZADAS NA
ARQUITETURA
As escalas de redução
recomendadas pela NBR 6492 para
a representação de projetos de
arquitetura são:
1:2; 1:5; 1:10; 1:20; 1:25; 1:50; 1:75;
1:100; 1:200; 1:250; 1:500.
PDF created with pdfFactory trial version www.pdffactory.com
FOLHAS PARA REPRESENTAÇÃO DE
DESENHOS DE ARQUITETURA
Dimensões
As normas em vigor, editadas pela ABNT adotam a
seqüência “A” de folhas, partindo da folha A0 com área de
aproximadamente 1,0m2. Cada folha na seqüência possui
dimensão igual a metade da folha anterior – por exemplo, a
folha A1 possui a metade do tamanho da folha A0, a folha
A2 possui a metade do tamanho da folha A1 e assim por
diante.
Dimensões das folhas:
Folha Largura (mm) Altura (mm)
A0 841X1189
A1 594X841
A2 420X594
A3 297X420
A4 210X297
PDF created with pdfFactory trial version www.pdffactory.com
FOLHAS PARA REPRESENTAÇÃO DE
DESENHOS DE ARQUITETURA
PDF created with pdfFactory trial version www.pdffactory.com
FOLHAS PARA REPRESENTAÇÃO DE
DESENHOS DE ARQUITETURA
PDF created with pdfFactory trial version www.pdffactory.com
MARGENS
PDF created with pdfFactory trial version www.pdffactory.com
CONFIGURAÇÃO DA FOLHA
A seguir são apresentadas as diversas regiões
da folha de desenho e a posição de cada um
dos elementos nas mesmas.
Usualmente a região acima da legenda é
reservada para marcas de revisão, para
observações, convenções e carimbos de
aprovação de órgãos públicos.
PDF created with pdfFactory trial version www.pdffactory.com
PDF created with pdfFactory trial version www.pdffactory.com
POSIÇÃO DE LEITURA
Como regra geral na representação e leitura de
desenhos deve se observar que os mesmos
possam ser lidos da base da folha de desenho
ou de sua direita.
As posições inversas a estas (leitura de cima
para baixo ou da esquerda para a direita) são
consideradas “de cabeça para baixo”. Vide
desenho a seguir.
PDF created with pdfFactory trial version www.pdffactory.com
PDF created with pdfFactory trial version www.pdffactory.com
SELO OU LEGENDA
A legenda de um desenho técnico deve conter, no mínimo, as
seguintes informações:
• Designação e emblema da empresa que está elaborando o projeto ou a obra;
• Nome do responsável técnico pelo conteúdo do desenho, com sua identificação
(inscrição no órgão de classe) e local para assinatura;
• Local e data;
• Nome ou conteúdo do projeto;
• Conteúdo da prancha (quais desenhos estão presentes na prancha);
• Escala(s) adotada(s) no desenho e unidade;
• Número da prancha;
PDF created with pdfFactory trial version www.pdffactory.com
NUMERAÇÃO DAS PRANCHAS
Junto com o número da prancha usualmente se informa o total
de pranchas do projeto – ex.: 2/9 significa: prancha 2 de um total
de 9 pranchas.
Usualmente inicia-se a numeração pela prancha que contém a
planta de situação e a de localização. Esta seria a prancha 1/x
(onde “x” é o número total de pranchas do projeto em questão).
A(s) prancha(s) seguinte(s) será(ao) a(s) que contém a(s)
planta(s) baixa(s). Se houver mais de uma planta baixa, a
numeração mais baixa corresponderá a prancha que contém as
plantas dos pavimentos mais baixos. Após as plantas baixas são
numeradas as pranchas que contém
o(s) corte(s) e, por último, a(s) fachada(s).
PDF created with pdfFactory trial version www.pdffactory.com
DOBRAGEM
A norma da ABNT (NBR 13142 – DOBRAMENTO DE
CÓPIA) recomenda procedimentos para que as cópias
sejam dobradas de forma que estas fiquem com
dimensões, após dobradas, similares as dimensões de
folhas tamanho A4. Esta padronização se faz necessária
para arquivamento e armazenamento destas cópias, pois
os arquivos e as pastas possuem dimensões
padronizadas.
A seguir são reproduzidos os desenhos constantes na
referida Norma indicando a forma que as folhas de
diferentes dimensões devem ser dobradas.
PDF created with pdfFactory trial version www.pdffactory.com
PDF created with pdfFactory trial version www.pdffactory.com
PDF created with pdfFactory trial version www.pdffactory.com
PDF created with pdfFactory trial version www.pdffactory.com
PDF created with pdfFactory trial version www.pdffactory.com
GLOSSÁRIO
PDF created with pdfFactory trial version www.pdffactory.com
PDF created with pdfFactory trial version www.pdffactory.com
PDF created with pdfFactory trial version www.pdffactory.com
PDF created with pdfFactory trial version www.pdffactory.com
PDF created with pdfFactory trial version www.pdffactory.com
PDF created with pdfFactory trial version www.pdffactory.com
PDF created with pdfFactory trial version www.pdffactory.com
PDF created with pdfFactory trial version www.pdffactory.com

Componentes do desenho arquitetonico.pdf

  • 1.
    Componentes do DesenhoArquitetônico FAU - UniNilton Lins Introdução ao Estudo do Habitat A Linguagem do Arquiteto PDF created with pdfFactory trial version www.pdffactory.com
  • 2.
    TÓPICOS 1- Normas; 2- Desenhosutilizados na representação dos projetos de edificações; 3- Tipos e linhas empregadas; 4- Cotagem e referências de nível; 5- Hachuras específicas; 6- Folhas de desenho; 7- Escalas; 8- Folhas para representação dos desenhos; 9- Glossário (termos usados). PDF created with pdfFactory trial version www.pdffactory.com
  • 3.
    1- NORMAS ACONSULTAR NBR 6492/94 – Representação de projetos de arquitetura; NBR 8196/99 – Emprego de escalas; NBR 8403/84 – Aplicações de linhas – tipos e larguras; NBR 10068/87 – Folha de desenho – leiaute e dimensões; NBR 13142/99 – Dobramento e cópia. PDF created with pdfFactory trial version www.pdffactory.com
  • 4.
    2- DESENHOS UTILIZADOSNA REPRESENTAÇÃO DOS PROJETOS ARQUITETÔNICOS DE EDIFICAÇÕES ¢ Planta de situação; ¢ Planta de localização; ¢ Planta baixa; ¢ Cortes longitudinais e transversais; ¢ Fachadas; ¢ Desenhos de detalhes; ¢ Outros; PDF created with pdfFactory trial version www.pdffactory.com
  • 5.
    PLANTA DE SITUAÇÃO Aplanta de situação deve conter: ¢ Curvas de nível; ¢ Indicação do norte; ¢ Vias de acesso; ¢ Indicações de área; ¢ Denominação dos edifícios; ¢ Construções existentes, demolições ou remoções futuras, área não edificáveis; ¢ Escalas; ¢ Notas gerais e legenda; PDF created with pdfFactory trial version www.pdffactory.com
  • 6.
    PLANTA DE SITUAÇÃO PDFcreated with pdfFactory trial version www.pdffactory.com
  • 7.
    PLANTA DE LOCALIZAÇÃO ¢A planta de localização deve conter: ¢ Sistemas de coordenadas referenciais e curvas de nível; ¢ Indicação do norte; ¢ Vias de acesso, vias internas, estacionamento e área coberta; ¢ Perímetro do terreno, limites, cotas gerais e níveis principais; ¢ Indicações dos limites externos: recuos e afastamentos; ¢ Denominação dos edifícios; ¢ Amarrações dos eixos do projeto a um ponto de referencia; ¢ Notas gerais, desenhos de referencia e legenda; ¢ Escalas. PDF created with pdfFactory trial version www.pdffactory.com
  • 8.
    PLANTA BAIXA Plantas baixassão cortes em cada pavimento através de planos horizontais imaginários situados em um altura entre a verga da porta e o peitoril da janela; ¢ Demarcação das paredes; ¢ Projeção dos beirais; ¢ Posição e dimensões das esquadrias; ¢ Representação das louças sanitárias; ¢ Representação dos quadriculados representativos de “pisos frios”; ¢ Representação dos textos e cotas; PDF created with pdfFactory trial version www.pdffactory.com
  • 9.
    PLANTA BAIXA PDF createdwith pdfFactory trial version www.pdffactory.com
  • 10.
    CORTES Os cortes devemconter: ¢ Eixos do projeto; ¢ Elementos estruturais; ¢ Cotas verticais; ¢ Cotas de nível; ¢ Fechamento interno e externo; ¢ Circulações verticais e horizontais; ¢ Cobertura / telhado; ¢ Forros; ¢ Denominação dos vários compartimentos; ¢ Notas de referencia; ¢ Marcação dos cortes; ¢ Escalas; PDF created with pdfFactory trial version www.pdffactory.com
  • 11.
    CORTES PDF created withpdfFactory trial version www.pdffactory.com
  • 12.
    CORTE PDF created withpdfFactory trial version www.pdffactory.com
  • 13.
    3- TIPOS EESPESSURA DE LINHA EMPREGADOS ESTREITA, MÉDIA, LARGA, TRACEJADA, TRAÇO-DOIS-PONTOS, ... ¢ Transmitem informações sobre os elementos que estão representando; Linhas largas: elementos estruturais ou de alvenaria cortados pelo plano de corte; Linhas médias: elementos leves cortados pelo plano de corte; Linhas estreitas: arestas e contornos aparentes, não cortados pelo plano de corte; PDF created with pdfFactory trial version www.pdffactory.com
  • 14.
    PDF created withpdfFactory trial version www.pdffactory.com
  • 15.
    PDF created withpdfFactory trial version www.pdffactory.com
  • 16.
    4- COTAGEM EREFERENCIAS DE NÍVEL PDF created with pdfFactory trial version www.pdffactory.com
  • 17.
    COTAGEM DE ESQUADRIAS PDFcreated with pdfFactory trial version www.pdffactory.com
  • 18.
    PDF created withpdfFactory trial version www.pdffactory.com
  • 19.
    5- HACHURAS ESPECÍFICAS PDFcreated with pdfFactory trial version www.pdffactory.com
  • 20.
    PDF created withpdfFactory trial version www.pdffactory.com
  • 21.
    6- ESCALAS USUALMENTEADOTADAS PDF created with pdfFactory trial version www.pdffactory.com
  • 22.
    ESCALAS O escalímetro éum instrumento de desenho técnico utilizado para desenhar objetos em escala ou facilitar a leitura das medidas de desenhos representados em escala. Podem ser planos ou triangulares, como o apresentado na figura. O escalímetro, escala ou régua triangular, é dividido em três faces, cada qual com duas escalas distintas. Pode-se, nesse caso, através da utilização de múltiplos ou submúltiplos dessas seis escalas, extrair um grande número de outras escalas. O escalímetro convencional utilizado na engenharia e na arquitetura é aquele que possui as seguintes escalas 1:20; 1:25; 1:50; 1:75; 1:100; 1:125. Cada unidade marcada nas escalas do escalímetro correspondem a um metro. Isto significa que aquela dada medida corresponde ao tamanho de um metro na escala adotada. Ex.: A escala gráfica correspondente a 1:50 é representada por segmentos iguais de 2cm, pois 1 metro/50= 0,02 = 2cm. PDF created with pdfFactory trial version www.pdffactory.com
  • 23.
    ESCALAS UTILIZADAS NA ARQUITETURA Asescalas de redução recomendadas pela NBR 6492 para a representação de projetos de arquitetura são: 1:2; 1:5; 1:10; 1:20; 1:25; 1:50; 1:75; 1:100; 1:200; 1:250; 1:500. PDF created with pdfFactory trial version www.pdffactory.com
  • 24.
    FOLHAS PARA REPRESENTAÇÃODE DESENHOS DE ARQUITETURA Dimensões As normas em vigor, editadas pela ABNT adotam a seqüência “A” de folhas, partindo da folha A0 com área de aproximadamente 1,0m2. Cada folha na seqüência possui dimensão igual a metade da folha anterior – por exemplo, a folha A1 possui a metade do tamanho da folha A0, a folha A2 possui a metade do tamanho da folha A1 e assim por diante. Dimensões das folhas: Folha Largura (mm) Altura (mm) A0 841X1189 A1 594X841 A2 420X594 A3 297X420 A4 210X297 PDF created with pdfFactory trial version www.pdffactory.com
  • 25.
    FOLHAS PARA REPRESENTAÇÃODE DESENHOS DE ARQUITETURA PDF created with pdfFactory trial version www.pdffactory.com
  • 26.
    FOLHAS PARA REPRESENTAÇÃODE DESENHOS DE ARQUITETURA PDF created with pdfFactory trial version www.pdffactory.com
  • 27.
    MARGENS PDF created withpdfFactory trial version www.pdffactory.com
  • 28.
    CONFIGURAÇÃO DA FOLHA Aseguir são apresentadas as diversas regiões da folha de desenho e a posição de cada um dos elementos nas mesmas. Usualmente a região acima da legenda é reservada para marcas de revisão, para observações, convenções e carimbos de aprovação de órgãos públicos. PDF created with pdfFactory trial version www.pdffactory.com
  • 29.
    PDF created withpdfFactory trial version www.pdffactory.com
  • 30.
    POSIÇÃO DE LEITURA Comoregra geral na representação e leitura de desenhos deve se observar que os mesmos possam ser lidos da base da folha de desenho ou de sua direita. As posições inversas a estas (leitura de cima para baixo ou da esquerda para a direita) são consideradas “de cabeça para baixo”. Vide desenho a seguir. PDF created with pdfFactory trial version www.pdffactory.com
  • 31.
    PDF created withpdfFactory trial version www.pdffactory.com
  • 32.
    SELO OU LEGENDA Alegenda de um desenho técnico deve conter, no mínimo, as seguintes informações: • Designação e emblema da empresa que está elaborando o projeto ou a obra; • Nome do responsável técnico pelo conteúdo do desenho, com sua identificação (inscrição no órgão de classe) e local para assinatura; • Local e data; • Nome ou conteúdo do projeto; • Conteúdo da prancha (quais desenhos estão presentes na prancha); • Escala(s) adotada(s) no desenho e unidade; • Número da prancha; PDF created with pdfFactory trial version www.pdffactory.com
  • 33.
    NUMERAÇÃO DAS PRANCHAS Juntocom o número da prancha usualmente se informa o total de pranchas do projeto – ex.: 2/9 significa: prancha 2 de um total de 9 pranchas. Usualmente inicia-se a numeração pela prancha que contém a planta de situação e a de localização. Esta seria a prancha 1/x (onde “x” é o número total de pranchas do projeto em questão). A(s) prancha(s) seguinte(s) será(ao) a(s) que contém a(s) planta(s) baixa(s). Se houver mais de uma planta baixa, a numeração mais baixa corresponderá a prancha que contém as plantas dos pavimentos mais baixos. Após as plantas baixas são numeradas as pranchas que contém o(s) corte(s) e, por último, a(s) fachada(s). PDF created with pdfFactory trial version www.pdffactory.com
  • 34.
    DOBRAGEM A norma daABNT (NBR 13142 – DOBRAMENTO DE CÓPIA) recomenda procedimentos para que as cópias sejam dobradas de forma que estas fiquem com dimensões, após dobradas, similares as dimensões de folhas tamanho A4. Esta padronização se faz necessária para arquivamento e armazenamento destas cópias, pois os arquivos e as pastas possuem dimensões padronizadas. A seguir são reproduzidos os desenhos constantes na referida Norma indicando a forma que as folhas de diferentes dimensões devem ser dobradas. PDF created with pdfFactory trial version www.pdffactory.com
  • 35.
    PDF created withpdfFactory trial version www.pdffactory.com
  • 36.
    PDF created withpdfFactory trial version www.pdffactory.com
  • 37.
    PDF created withpdfFactory trial version www.pdffactory.com
  • 38.
    PDF created withpdfFactory trial version www.pdffactory.com
  • 39.
    GLOSSÁRIO PDF created withpdfFactory trial version www.pdffactory.com
  • 40.
    PDF created withpdfFactory trial version www.pdffactory.com
  • 41.
    PDF created withpdfFactory trial version www.pdffactory.com
  • 42.
    PDF created withpdfFactory trial version www.pdffactory.com
  • 43.
    PDF created withpdfFactory trial version www.pdffactory.com
  • 44.
    PDF created withpdfFactory trial version www.pdffactory.com
  • 45.
    PDF created withpdfFactory trial version www.pdffactory.com
  • 46.
    PDF created withpdfFactory trial version www.pdffactory.com