• Desde 1986 desenvolve projetos no ramo de
equipamentos voltados à transmissão e
controle de força mecânica.
• Oferece soluções industriais essenciais ou
customizadas com responsabilidade técnica,
qualidade, precisão e segurança.
2
Santo André – São Paulo
Soluções industriais
essenciais ou
customizadas
3
• A Tec Tor possui gestão ISO9001
• Possui CRCC Petrobrás
• Certificado de Conteúdo
9001:2008
• Mineração
• Siderurgia
• Cimento
• Papel e Celulose
• Sucro-Alcooleiro
• Alimentos
• Indústrias de Máquinas
• Óleo e Gás
• Naval e Offshore
• Eólico
4
5
6
• Representantes
• Brasil
• Chile
• Peru
• Argentina
7
8
Estados Unidos
Pintsch Bubebzer
Rulmeca
Canada
Pintsch Bubebzer
Horne
Rulmeca
Venezuela
Rulmeca
China
Rulmeca
Africa do Sul
Rulmeca
Horne
Italia
Rulmeca
França
Rulmeca
Alemanha
Pintsch Bubebzer
Rulmeca
Brasil
São Paulo
Tec Tor
Horne
Pintsh Bubenzer
Rulmeca
Tec Tor
Australia
Brisbane
Rulmeca
Suécia
Falun
Rulmeca
Inglaterra
Rulmeca
Turquia
Rulmeca
Tailandia
Rulmeca
9
• Acoplamentos Elásticos
•Catracas / Rodas Livres
• Contra Recuos / Backstops
• Freios Industriais a Disco / Tambor
• Grampos de Ancoragem
• Eixos “Compensadores” Industriais (ECI)
• Embreagens Industriais
• Tambores Auto acionadoS (TAS)
• Elementos de Fixação
• Limitadores de torque mecânicos com reset manual ou automático
• Limitadores de torque pneumáticos com reset automático
Entendendo as CARACTERÍSTICAS
• As embreagens TTEMB são rodas livres automáticas desenvolvidas para
serviço contínuo em alta rotação e alto torque, aptas a suportar
trabalhos em ambientes agressivos, sujeitos a pó em suspensão,
elementos abrasivos, condições meteorológicas adversas e outros.
• A inteligência de seu projeto aliada a robustez de sua construção e ao
exclusivo sistema de lubrificação, garantem ao produto uma longa vida
útil com baixa geração de ruído e necessidade de ações de manutenção.
11
• Instalada em sistemas motrizes que possuem acionamento duplo
ou acionamentos auxiliares, as unidades TTEMB tem como
principio de funcionamento permitir automaticamente, o giro
livre de um dos lados dos sistemas motrizes, prevenindo-os contra
desgaste prematuro de componentes do acionamento e/ou
economizando energia elétrica quando da existência de
acionamento alimentado por fontes alternativas de energia.
12
• As embreagens TTREC são Backstops que trabalham em conjunto com
Freio Eletromagnético Multi-discos e Freio Centrífugo.
• O TTREC foi projetado para trabalhar em conjunto com o acionamento
Auxiliar em Moinhos e Fornos Rotativos.
13
• A linha TTEMB, é dividida em dois modelos, sendo eles: TTEMB-S e
TTEMB-D.
• As unidades TTEMB-D visão atender a norma de segurança
internacional OSHAS e para isto são dotadas de uma alavanca que
permite a desconexão física entre eixo de entrada e eixo de saída.
• As unidades TTEMB-S não possuem esta alavanca, porém possuem as
mesmas características técnicas dos equipamentos da linha TTEMB-D.
14
OHSAS - Occupational Health and Safety Assessment Services
15
• Linha TTEMB-S
• A linha TTEMB-S possui especial sistema
de lubrificação que através de
elementos de filtragem e dispositivos de
decantação, presentes na torre de
resfriamento, permitem que as unidades
desta linha operem com baixa
temperatura operacional, mantendo a
viscosidade de fluído lubrificante
constante, aumentando a vida útil do
equipamento.
16
• TTEMB-S
17
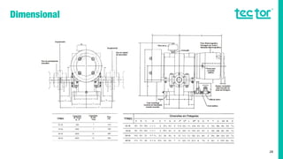
Modelo
Torque
(N.m)
Torque
(Lb.ft)
RPM
Peso
(kg)
5SC 1350 500 5600 144
1S 1350 1000 5600 144
2S 2700 2000 4200 198
4S 5400 4000 3600 252
8S 10800 8000 3000 351
12S 16200 12000 2500 540
18S 24300 18000 2300 720
30S 40500 30000 2000 900
42S 56700 42000 1700 1125
60S 81000 60000 1400 1350
18
• Linha TTEMB-D
• A linha TTEMB-D tem como característica
permitir através da alavanca de Conexão /
Desconexão, desconectar mecanicamente
o acionamento auxiliar do principal,
garantindo maior segurança quando da
necessidade de manutenção dos sistemas
principal ou auxiliar, atendendo
integralmente aos requisitos da norma
OHSAS 18000 e suas aplicações.
19
• A alavanca de Conexão/Desconexão deve ser utilizada SOMENTE em
serviços de manutenção, NÃO devendo ser utilizada como sistema “ON /
OFF” do equipamento, uma vez que este é totalmente automático.
22
• TTEMB-D
23
Modelo
Torque
(N.m)
Torque
(Lb.ft)
RPM
Peso
(kg)
1D 1350 1000 5600 144
2D 2700 2000 4200 198
4D 5400 4000 3600 252
8D 10800 8000 3000 351
12D 16200 12000 2500 540
18D 24300 18000 2300 720
30D 40500 30000 2000 900
42D 56700 42000 1700 1125
60D 81000 60000 1400 1350
• Linha TTEMB-D
24
1. Visor de Nível de Óleo Estático.
2. Visor de Nível de Óleo
Dinâmico.
3. Eixo de Saída.
4. Cadeado de Segurança.
5. Haste para Cadeado.
6. Redução de conexão.
7. Filtro de Ar.
8. Alavanca de Conexão.
9. Pino Indicador de Conexão.
10. Dreno.
12. Eixo de Entrada.
25
26
28
TTREC
Capacidade
de Torque
lb - ft
Capacidade
de óleo
Pints
Peso
Lbs.TTREC
30Fornos ou Moinhos
Ventiladores
31
TTEMB
TTEMB
TTREC
32
TTEMB
TTREC
Alternativa A
Alternativa B
• A função do TTEMB é permitir que os procedimentos relatados
sejam realizados de forma automática, sem expor ao perigo
funcionários ou operadores durante falhas no momento de engate
dos acoplamentos dentados, que acabam provocando a explosão
de partes do acionamento, ceifando vidas humanas.
33
• A função do TTREC é garantir que não ocorra a reversão descontrolada
do Moinho ou Forno quando faltar energia elétrica ou durante uma
parada programada.
• A reversão do Moinho ou Forno só ocorrerá quando o TTREC receber
um sinal do Painel Central, proveniente de fonte alternativa de energia,
ou tiver sua chave manual de desbloqueio acionada.
34
• Neste caso o Freio Centrífugo do TTREC permitirá que o Moinho ou
Forno gire lentamente até encontrar o ponto de equilíbrio da massa
interna a ele.
• Este equipamento é o grande responsável por evitar as indesejáveis giro
torções no Forno Rotativo, as quais levam ao descolamento da massa
que protege o revestimento refratário, suas quedas e conseqüentes
entupimentos da grelha de saída.
35
36
• Para selecionar o equipamento alguns dados são necessários:
• Potência Nominal do acionamento Auxiliar ( Motor, Turbina,...)
• Rotação do Sistema Auxiliar ( Quando em giro livre )
• Rotação do eixo do Motor Principal a ser instalado o TTEMB
• Sentido de giro deste eixo
• Solicite o questionário completo
38
• Fatores de Serviço
• Os fatores de serviço aplicados
dependem das capacidades dos
acionamentos, responsabilidade da
aplicação e níveis de segurança
desejados.
• Tabela Prática de Aplicação
39
• Cálculo de Selecionamento Conforme Torque Máximo do Acionamento
• Onde:
• 7162 : Constante de Cálculo
• P : Potência total do acionamento em cavalos
• RPM : Rotação do eixo de instalação
• F.S. : Fator de Serviço Aplicado
40
Torque [N.m] =
7162 x P (cv)
x F.S.
RPM
• Módulo 1 - INSPEÇÃO DE LINHAS
• Módulo 2 - INSPEÇÃO DE ÓLEO
• Módulo 3 - CONTRATOS DE MANUTENÇÃO
• Módulo 4 - RETIRADA E ENTREGA
• Módulo 5 - RENOVAÇÃO DA GARANTIA DE FÁBRICA
• Módulo 6 - ENGENHARIA DE MANUTENÇÃO PREDITIVA
• Módulo 7 - COLOCAÇÃO DE ACIONAMENTOS EM OPERAÇÃO
• Módulo 8 – TREINAMENTOS
41
• Manutenção e Recuperação de todos os tipos de equipamentos
incluindo nacionalização de componentes.
• Balanceamento de ECI’s;
• Usinagens de cruzetas;
• Start Up;
• Montagem e Manutenção;
• Treinamentos;
42
43
ANTES
DEPOIS
Colocamos nossa equipe a sua disposição.
44
Tel.: (11) 4428-2888
Fax.:(11) 4421-9338
www.tector.com.br
vendas@tector.com.br
Atualização:08/2014

Embreagens Industriais Tec Tor

  • 2.
    • Desde 1986desenvolve projetos no ramo de equipamentos voltados à transmissão e controle de força mecânica. • Oferece soluções industriais essenciais ou customizadas com responsabilidade técnica, qualidade, precisão e segurança. 2 Santo André – São Paulo Soluções industriais essenciais ou customizadas
  • 3.
    3 • A TecTor possui gestão ISO9001 • Possui CRCC Petrobrás • Certificado de Conteúdo 9001:2008
  • 4.
    • Mineração • Siderurgia •Cimento • Papel e Celulose • Sucro-Alcooleiro • Alimentos • Indústrias de Máquinas • Óleo e Gás • Naval e Offshore • Eólico 4
  • 5.
  • 6.
  • 7.
    • Representantes • Brasil •Chile • Peru • Argentina 7
  • 8.
    8 Estados Unidos Pintsch Bubebzer Rulmeca Canada PintschBubebzer Horne Rulmeca Venezuela Rulmeca China Rulmeca Africa do Sul Rulmeca Horne Italia Rulmeca França Rulmeca Alemanha Pintsch Bubebzer Rulmeca Brasil São Paulo Tec Tor Horne Pintsh Bubenzer Rulmeca Tec Tor Australia Brisbane Rulmeca Suécia Falun Rulmeca Inglaterra Rulmeca Turquia Rulmeca Tailandia Rulmeca
  • 9.
    9 • Acoplamentos Elásticos •Catracas/ Rodas Livres • Contra Recuos / Backstops • Freios Industriais a Disco / Tambor • Grampos de Ancoragem • Eixos “Compensadores” Industriais (ECI) • Embreagens Industriais • Tambores Auto acionadoS (TAS) • Elementos de Fixação • Limitadores de torque mecânicos com reset manual ou automático • Limitadores de torque pneumáticos com reset automático
  • 10.
  • 11.
    • As embreagensTTEMB são rodas livres automáticas desenvolvidas para serviço contínuo em alta rotação e alto torque, aptas a suportar trabalhos em ambientes agressivos, sujeitos a pó em suspensão, elementos abrasivos, condições meteorológicas adversas e outros. • A inteligência de seu projeto aliada a robustez de sua construção e ao exclusivo sistema de lubrificação, garantem ao produto uma longa vida útil com baixa geração de ruído e necessidade de ações de manutenção. 11
  • 12.
    • Instalada emsistemas motrizes que possuem acionamento duplo ou acionamentos auxiliares, as unidades TTEMB tem como principio de funcionamento permitir automaticamente, o giro livre de um dos lados dos sistemas motrizes, prevenindo-os contra desgaste prematuro de componentes do acionamento e/ou economizando energia elétrica quando da existência de acionamento alimentado por fontes alternativas de energia. 12
  • 13.
    • As embreagensTTREC são Backstops que trabalham em conjunto com Freio Eletromagnético Multi-discos e Freio Centrífugo. • O TTREC foi projetado para trabalhar em conjunto com o acionamento Auxiliar em Moinhos e Fornos Rotativos. 13
  • 14.
    • A linhaTTEMB, é dividida em dois modelos, sendo eles: TTEMB-S e TTEMB-D. • As unidades TTEMB-D visão atender a norma de segurança internacional OSHAS e para isto são dotadas de uma alavanca que permite a desconexão física entre eixo de entrada e eixo de saída. • As unidades TTEMB-S não possuem esta alavanca, porém possuem as mesmas características técnicas dos equipamentos da linha TTEMB-D. 14 OHSAS - Occupational Health and Safety Assessment Services
  • 15.
  • 16.
    • Linha TTEMB-S •A linha TTEMB-S possui especial sistema de lubrificação que através de elementos de filtragem e dispositivos de decantação, presentes na torre de resfriamento, permitem que as unidades desta linha operem com baixa temperatura operacional, mantendo a viscosidade de fluído lubrificante constante, aumentando a vida útil do equipamento. 16
  • 17.
    • TTEMB-S 17 Modelo Torque (N.m) Torque (Lb.ft) RPM Peso (kg) 5SC 1350500 5600 144 1S 1350 1000 5600 144 2S 2700 2000 4200 198 4S 5400 4000 3600 252 8S 10800 8000 3000 351 12S 16200 12000 2500 540 18S 24300 18000 2300 720 30S 40500 30000 2000 900 42S 56700 42000 1700 1125 60S 81000 60000 1400 1350
  • 18.
  • 19.
    • Linha TTEMB-D •A linha TTEMB-D tem como característica permitir através da alavanca de Conexão / Desconexão, desconectar mecanicamente o acionamento auxiliar do principal, garantindo maior segurança quando da necessidade de manutenção dos sistemas principal ou auxiliar, atendendo integralmente aos requisitos da norma OHSAS 18000 e suas aplicações. 19
  • 22.
    • A alavancade Conexão/Desconexão deve ser utilizada SOMENTE em serviços de manutenção, NÃO devendo ser utilizada como sistema “ON / OFF” do equipamento, uma vez que este é totalmente automático. 22
  • 23.
    • TTEMB-D 23 Modelo Torque (N.m) Torque (Lb.ft) RPM Peso (kg) 1D 13501000 5600 144 2D 2700 2000 4200 198 4D 5400 4000 3600 252 8D 10800 8000 3000 351 12D 16200 12000 2500 540 18D 24300 18000 2300 720 30D 40500 30000 2000 900 42D 56700 42000 1700 1125 60D 81000 60000 1400 1350
  • 24.
    • Linha TTEMB-D 24 1.Visor de Nível de Óleo Estático. 2. Visor de Nível de Óleo Dinâmico. 3. Eixo de Saída. 4. Cadeado de Segurança. 5. Haste para Cadeado. 6. Redução de conexão. 7. Filtro de Ar. 8. Alavanca de Conexão. 9. Pino Indicador de Conexão. 10. Dreno. 12. Eixo de Entrada.
  • 25.
  • 26.
  • 28.
    28 TTREC Capacidade de Torque lb -ft Capacidade de óleo Pints Peso Lbs.TTREC
  • 30.
  • 31.
  • 32.
  • 33.
    • A funçãodo TTEMB é permitir que os procedimentos relatados sejam realizados de forma automática, sem expor ao perigo funcionários ou operadores durante falhas no momento de engate dos acoplamentos dentados, que acabam provocando a explosão de partes do acionamento, ceifando vidas humanas. 33
  • 34.
    • A funçãodo TTREC é garantir que não ocorra a reversão descontrolada do Moinho ou Forno quando faltar energia elétrica ou durante uma parada programada. • A reversão do Moinho ou Forno só ocorrerá quando o TTREC receber um sinal do Painel Central, proveniente de fonte alternativa de energia, ou tiver sua chave manual de desbloqueio acionada. 34
  • 35.
    • Neste casoo Freio Centrífugo do TTREC permitirá que o Moinho ou Forno gire lentamente até encontrar o ponto de equilíbrio da massa interna a ele. • Este equipamento é o grande responsável por evitar as indesejáveis giro torções no Forno Rotativo, as quais levam ao descolamento da massa que protege o revestimento refratário, suas quedas e conseqüentes entupimentos da grelha de saída. 35
  • 36.
  • 38.
    • Para selecionaro equipamento alguns dados são necessários: • Potência Nominal do acionamento Auxiliar ( Motor, Turbina,...) • Rotação do Sistema Auxiliar ( Quando em giro livre ) • Rotação do eixo do Motor Principal a ser instalado o TTEMB • Sentido de giro deste eixo • Solicite o questionário completo 38
  • 39.
    • Fatores deServiço • Os fatores de serviço aplicados dependem das capacidades dos acionamentos, responsabilidade da aplicação e níveis de segurança desejados. • Tabela Prática de Aplicação 39
  • 40.
    • Cálculo deSelecionamento Conforme Torque Máximo do Acionamento • Onde: • 7162 : Constante de Cálculo • P : Potência total do acionamento em cavalos • RPM : Rotação do eixo de instalação • F.S. : Fator de Serviço Aplicado 40 Torque [N.m] = 7162 x P (cv) x F.S. RPM
  • 41.
    • Módulo 1- INSPEÇÃO DE LINHAS • Módulo 2 - INSPEÇÃO DE ÓLEO • Módulo 3 - CONTRATOS DE MANUTENÇÃO • Módulo 4 - RETIRADA E ENTREGA • Módulo 5 - RENOVAÇÃO DA GARANTIA DE FÁBRICA • Módulo 6 - ENGENHARIA DE MANUTENÇÃO PREDITIVA • Módulo 7 - COLOCAÇÃO DE ACIONAMENTOS EM OPERAÇÃO • Módulo 8 – TREINAMENTOS 41
  • 42.
    • Manutenção eRecuperação de todos os tipos de equipamentos incluindo nacionalização de componentes. • Balanceamento de ECI’s; • Usinagens de cruzetas; • Start Up; • Montagem e Manutenção; • Treinamentos; 42
  • 43.
  • 44.
    Colocamos nossa equipea sua disposição. 44 Tel.: (11) 4428-2888 Fax.:(11) 4421-9338 www.tector.com.br vendas@tector.com.br Atualização:08/2014