AUP 5846
PROJETOS DE ARQUITETURA URBANA
TIPOLOGIAS DE EDIFICAÇÕES
    SOLUÇÕES PADRÃO



         FERNANDA AIEX
CONJUNTO NACIONAL
    DAVID LIBESKIND
              1954-1966
FIESP
RINO LEVI
BRASCAN CENTURY OFFICES
  KONIGSBERGER VANNUCHI
RUA BANDEIRA PAULISTA




 RUA JOAQUIM FLORIANO
TIMES SQUARE
KONIGSBERGER VANNUCHI
STADIUM
KONIGSBERGER VANNUCHI
CONTINENTAL SQUARE
   AFLALO E GASPERINI
ATRIUM VI
AFLALO E GASPERINI
ATRIUM VII
AFLALO E GASPERINI
E-TOWER
AFLALO E GASPERINI
BLUE TREE TOWERS
 AFLALO E GASPERINI
BIRMANN 31
SKIDMORE, OWINGS & MERRIL
FARIA LIMA PREMIUM
      MIGUEL JULIANO
CENTRO EMPRESARIAL NAÇÕES UNIDAS
                     BOTTI E RUBIN
PLAZA 1 E PLAZA 2
    BOTTI E RUBIN
WORLD TRADE CENTER
  AFLALO E GASPERINI
BERRINI 1511
BOTTI E RUBIN
CENTRO EMPRESARIAL E CULTURAL
    JOÃO DOMINGUES DE ARAÚJO
                CARLOS BRATKE
HIGIENÓPOLIS CLASSIC WORK
MARCO DONINI E FRANCISCO ZELESNIKAR
OHTAKE CULTURAL
      RUY OHTAKE
TORRE 2000
JONAS BIRGER
FLAT GEORGE RESIDENCE
            RUY OHTAKE
HOTEL HOLLIDAY INN SELECT JARAGUÁ
                    MIGUEL JULIANO
PERDIZES TOWER FLAT
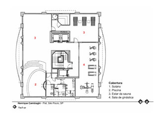
  HENRIQUE CAMBIAGHI
HOTEL ESTANPLAZA BERRINI
        ROBERTO CANDUSSO
HELBOR LOFT EVOLUTION II
         EGC ARQUITETURA
EDIFÍCIO ANA LUÍZA
PADOVANO & ASSOCIADOS
CONDOMÍNIO DE APARTAMENTOS NO SUMARÉ
               EDUARDO MARTINS FERREIRA
CAMPO BELÍSSIMO
AFLALO E GASPERINI
QuickTime™ and a
TIFF (Uncompressed) decompressor
   are needed to see this picture.
                                               QuickTime™ and a
                                     TIFF (Uncompressed) decompressor
                                        are needed to see this picture.




                                     Estilo: “Neoclássico”
                                     Projeto Arquitetônico: Roberto Candusso
                                     Área do Terreno do Condomínio: 2.513 m2
                                     No. de Pavimentos: 27 Pavimentos + Duplex
                                     No. de Elevadores: 04
                                     No. Total de Unidades: 187
                                     1 dormitório - 1 vaga
                                     44,380 m2 privativos
PLANTA 1 DORMITÓRIO    PLANTA 2 DORMITÓRIOS




PLANTA 2 DORMITÓRIOS   PLANTA 3 DORMITÓRIOS
QuickTime™ and a
TIFF (Uncompressed) decompressor
   are needed to see this picture.
                                               QuickTime™ and a
                                     TIFF (Uncompressed) decompressor
                                        are needed to see this picture.




                                     Estilo: “Moderno”
                                     Projeto Arquitetônico: Elizabeth Goldfarb
                                     Área do Terreno do Condomínio: 5.003 m2
                                     Nº Pavimentos: 03 Sobresolos, térreo,
                                     22 pavimentos tipo e cobertura
                                     Nº de Elevadores: 03 (02 sociais e 01 serviço)
                                     Nº Total de Unidades: 184
                                     A.privativa: 48,5 m2
                                     A.Comum: 56,667 m2
                                     1 e 2 dormitórios (apartamentos duplex)
                                     1 vaga
PLANTA 1 DORMITÓRIO (DUPLEX)




PLANTA 2 DORMITÓRIOS (SUP.)    PLANTA 2 DORMITÓRIOS (INF.)
CONDOMÍNIO EM MOEMA (CYRELA)
PLANTA 3 DORMITÓRIOS
PLANTA 2 DORMITÓRIOS
PLANTA 2 DORMITÓRIOS (DUPLEX)
PLANTA 2 DORMITÓRIOS (DUPLEX)
SEDE GRUPO FENÍCIA - 1980
TITO LIVIO E VASCO DE MELLO
“No número 1411 da rua da Consolação, São Paulo, no centro do terreno
hoje ocupado por um estacionamento, o mato na grande cratera esconde
as fundações daquele que deveria ter sido o edifício-símbolo do Grupo
Fenícia. Dessa corporação fez parte, em determinada época, a indústria
de alimentos Etti, mas a sua face mais visível é a Arapuã, conhecida rede
de lojas de eletrodomésticos.

Prédios inacabados, com estruturas ou obras semi-abandonadas, são
comuns em São Paulo - e alguns desses esqueletos longevos foram, de
certa forma, até assimilados à paisagem da capital. A sede do TRT-
Tribunal Regional do Trabalho, por exemplo,
é célebre por sua trajetória associada à corrupção.

Outras obras inacabadas, apesar de não carregarem estigma tão
negativo, representam incômodo urbano. Inclui-se aí aquela que seria a
sede da concessionária de energia Eletropaulo, na marginal do rio
Pinheiros.”


ARCO WEB – FANTASMA URBANO

Buildings RESEARCH