Nova   centralidade urbana em    Pouso Alegre - MG




                                                  Igor Lombardi
                                Fábio Mariz Gonçalves (orientador)
Universidade de São Paulo
Faculdade de Arquitetura e Urbanismo




Nova centralidade urbana em Pouso Alegre - MG



Trabalho Final de Graduação II




Igor T. Lombardi Almeida
Orientador: Fábio Mariz Gonçalves


Dezembro de 2012
AGRADECIMENTOS

Agradeço em primeiro lugar aos meus pais, Rosângela e Jardel, por todo
seu esforço e contribuição para meu crescimento pessoal e acadêmico,
aos meus amigos que me entusiasmaram nesta jornada do Trabalho
Final de Graduação e, aos professores Fábio Mariz e Neyde Cabral, que
com sua experiência me instrumentalizaram e motivaram para criar este
projeto com liberdade e autonomia.
ÍNDICE




	APRESENTAÇÃO					                                      5    5	     PROPOSTA						                                   32


1	INTRODUÇÃO						                                      6    5.1.	Conceito geral						                               33
                                                             5.1.1.	 Plano de massas para o entorno			               34
1.1. 	   Pouso Alegre - Dados gerais				                8    5.2.	Terminal rodoviário, urbano e mercado municipal	   43
1.2. 	   Justificativa e objetivos					                 9    5.2.1.	 Partido arquitetônico					                      43
                                                             5.2.2.	 Programa de necessidades do edifício			         46
2	HISTÓRIA						                                        10
                                                             6	TERMINAL RODOVIÁRIO, URBANO E MERCADO	                49
2.1. 	O começo de tudo					                             11   	      MUNICIPAL - plantas cortes e perspectivas
2.2. 	A cidade vitrine						                            12
2.3. 	A cidade capitalista e os bairros periféricos		   13   7	CONCLUSÃO						                                       86


3	       PLANO DIRETOR					                             14   8	BIBLIOGRAFIA						                                    87	
                                                             			
3.1. 	Análise geral						                               15


4	ÁREA DE INTERVENÇÃO				                               20   	

4.1. 	Análise da área de intervenção				                21
4.1.1. 	Região   cenral						                           22
4.1.2. 	 Mercado municipal					                         23
4.1.3. 	Avenida duque de caxias				                     25
4.1.4. 	Terminal rodoviário					                        26
APRESENTAÇÃO




Por ter vivido muito tempo na região do Sul de Minas, particularmente     Primeiramente, foi feito um levantamento sobre a situação atual do cen-
em Pouso Alegre, escolhi essa cidade para desenvolver meu Trabalho        tro, em especial do Terminal Rodoviário e toda sua relação com o entor-
Final de Graduação. Sempre observei seu contexto urbano e imaginei        no. A partir daí, fui capaz de traçar diretrizes para um plano de massas e
propostas para melhorá-lo. Com este trabalho, tenho uma oportunidade      construir um edifício que proporcionasse novas conexões em um tecido
de realizar uma um projeto concreto e uma análise mais abrangente de      urbano que atualmente encontra-se fragmentado.
tudo que fora observado como arquiteto e urbanista durante minha tra-
getória acadêmica.                                                        O objetivo é ordenar e expandir uma região em ascenção que, como na
                                                                          maioria das cidades brasileiras, sofre com o crescimento desordenado,
Pouso Alegre gradativamente vem tomando uma posição econômica im-         o qual desencadeia uma série de conflitos causados pela falta de plane-
portante no estado de Minas Gerais, sendo um dos municípios que mais      jamento e pela quase inexistência de políticas sociais.
cresce nas últimas décadas e onde mais se instalaram indústrias, esta-
belecimentos comerciais e instituicionais de grande porte, devido à sua
boa localização, e à importantes obras de infraestrutura para comportar
essa demanda. Consequentemente, muitas pessoas são atraídas em
busca de emprego e novas oportunidades.


Apesar dos esforços a respeito de infraestrutura, como criação de Par-
ques industriais, duplicação e criação de novas avenidas, etc., a área
central de Pouso Alegre continua estagnada, com ruas cada vez mais
congestionadas e espaços públicos cada vez piores.


Uma das premissas deste trabalho foi a melhoria, requalificação e cria-
ção de instalações para o sistema de transporte público que fossem
capazes de ampliar e atender a um alto padrão de qualidade de suas
funções, além de atuar como um novo referencial para a cidade.




                                                                                                                                                       5
1. INTRODUÇÃO
Problemas como desigualdade, degradação dos espaços públicos e pri-                     Correa (2007) estabelece uma classificação para as cidades de pequeno
vados, gentrificação, violência, etc., não atingem somente os grandes                   e de médio porte. Pouso Alegre se encaixa no grupo das cidades mé-
centros urbanos, mas também as cidades que mais se desenvolvem no                       dias. Essas cidades são subdivididas em três subgrupos: no primeiro,
país: as cidades médias. Em constante ascensão, elas atraem grande                      o lugar central é responsável pela oferta de bens e serviços para uma
número de pessoas em busca de emprego e qualidade de vida. Porém,                       hinterlândia regional; o segundo consiste em um centro de drenagem
na maioria das vezes, não estão preparadas para absorver o aumento                      e consumo da renda fundiária, que serve de suporte para atividades
do contingente populacional.                                                            agropastoris e, por fim, os centros de atividades especializadas, onde se
                                                                                        desenvolvem nichos de atividades específicas.
Um dos fatores que favorece o crescimento de Pouso Alegre é a sua
localização estratégica, muito próxima aos grandes centros nacionais                    Podemos considerar que Pouso Alegre faz parte do primeiro grupo, pois,
e regionais, o que facilita a transação econômica e de pessoas entre a                  como dito anteriormente, é uma grande área de influência para os mu-
cidade e esses pólos.                                                                   nicípios vizinhos. Em contraposição, Pouso Alegre também se identifica
                                                                                        com o segundo, pois possui intensa atividade industrial, a qual geral-
             O município de Pouso Alegre está localizado no Sul do Estado de Mi-        mente possui vínculos externos, com produção voltada para o mercado
             nas Gerais, compreendido na latitude 22º 14’ 02” e longitude 45º 55’ e     nacional e internacional.
             59”. Está relativamente próximo das principais regiões metropolitanas do

             país, através da rodovia BR 381 (Fernão Dias), que faz a ligação com as    A criação de um novo edifício que abranja não somente o âmbito eco-
             cidades de São Paulo (200 km) e Belo Horizonte (384 km), e a rodovia       nômico, mas também as questões urbanas e sociais, é pauta de um
             BR 459, por onde há o escoamento em direção as cidades de Poços de         processo de desenvolvimento voltado prioritariamente para servir de su-
             Caldas (100 km) e Rio de Janeiro(360 km). O município é cortado ainda      porte ao bem-estar social.
             pela rodovia MG 290, importante via de escoamento para a cidade de

             Campinas-SP. (FARIA, 2008).                                                Neste trabalho, serão abordados tais aspectos econômicos e sociais, e
                                                                                        também quais os fatores que nortearam o partido arquitetônico da nova
                                                                                        centralidade. A partir desta análise, será criado um plano de massas
                                                                                        para a reestruturação do centro, finalizando no estudo preliminar do pro-
                                                                                        jeto de arquitetura do edifício proposto.




                                                                                                                                                                    7
1.1. Pouso Alegre - Dados Gerais1




Mesorregião		              Sul/Sudoeste de Minas


Microrregião		             Pouso Alegre


Fundação		                 19 de outubro de 1848 (163 anos)


Gentílico		 pouso-alegrense


Área	   		                 543,883 km²


População		                132.445 hab. Estimativa IBGE/2011


Densidade		                240,51 hab./km²


IDH			                     0,826 elevado PNUD/2000

PIB			                     R$ 2.563.771 mil IBGE/2008

                                                                                         Pouso Alegre
PIB per capita		           R$ 20.033,53 (2009)


Altitude			832 m


Clima			                   Tropical de Altitude


Temperatura média 	        17,8°C




1	      Dados obtidos do site www.ibge.gov.br/cidadesat e www.wikipedia.com.br/Pouso 	
	       Alegre (06/2012)
                                                                                                        8
1.2. Justificativa e Objetivos



A ideia de criar um edifício que agregasse um Terminal de ônibus Inter-                     Outro fator relevante para a criação de um projeto referência para a Pou-
municipal e Urbano e um Mercado Municipal para a cidade de Pouso                            so Alegre, é que a cidade se tornou alvo de grandes investimentos que
Alegre, na mesma área onde se situa a atual rodoviária, fez com que,                        se intensificaram nesses útilmos anos. Em um jornal regional atualmente
através de uma análise da estruturação urbana e dos principais eixos e                      foi publicado:
entroncamentos da área central, fosse evidenciado o grande potencial
do amplo terreno, que está localizado nos limites da Av. Antonio Mario-                                      Dados da Secretaria de Desenvolvimento Econômico projetam um cres-

sa, principal acesso do centro à Rodovia Fernão Dias (BR 381).                                               cimento do Produto Interno Bruto que deve fazer dobrar as riquezas da

                                                                                                             cidade até o final de 2013. De acordo com a projeção, o PIB de Pouso

Ao lado oposto desta avenida encontra-se um dos bairros mais carentes                                        Alegre, que é a soma de todas as riquezas produzidas pelo município em

do município, o São Geraldo, que conta com uma população de 35 mil                                           um único ano, chegará a R$ 5,7 bilhões, no final de 2013. O valor repre-

habitantes, ou seja, mais de 1/4 de toda a população urbana.                                                 senta mais que o dobro da última marcação feita pelo Instituto Brasileiro

                                                                                                             de Geografia e Estatísticas, o IBGE. Em 2009, o órgão estimou o PIB da

O Rio Mandú é o principal rio da cidade e delimita o perímetro do bairro,                                    cidade em R$ 2,563 bilhões.” (P.A Notícias. Pouso Alegre. 25 de Maio

porém, a expansão demográfica e o aumento das invasões nas áreas de                                          de 2012).

proteção ambiental por ocupações irregulares, ameaçam a integridade
da mata ciliar e intensificam os problemas socio-ambientais.                                Com isso, é evidente que a cidade necessita melhorar sua infraestrutura
                                                                                            e mostrar-se capaz de gerir esse crescimento, ampliando e criando no-
Dentro do zoneamento de Pouso Alegre, o bairro São Geraldo, mais co-                        vas instalações para transporte público, expandindo a região central em
nhecido como “Aterrado” , encontra-se em uma ZEIS, que corresponde
                              1
                                                                                            todos os seus aspectos, principalmente seus espaços sociais e construir
a “áreas ocupadas por população pertencente aos estratos de menor                           um futuro promissor, resultante desta ascenção econômica, a qual trará
renda, as quais deverão ser objeto de programas de regularização urba-                      mais qualidade de vida a seus moradores, que são os principais agentes
nística e fundiária e/ou reassentamento, quando for o caso”, conforme o                     colaboradores do desenvolvimento.
Plano Diretor do Município (2008, p. 08).




1	         O São Geraldo é conhecido popularmente por “Aterrado”, e geralmente recebe
associações entre as suas precárias condições estruturais e de seus habitantes (a maioria
de baixa renda),com a violência e os malefícios que atingem o restante da cidade. Isto
inclusive ocorreu com políticos locais, a exemplo do presidente da câmara dos vereadores
Moacir Franco, que o descreveu como um “câncer no coração da cidade” (Folha de Pouso
Alegre, 2011).
                                                                                                                                                                                         9
2. HISTÓRIA
2.1. O começo de tudo



A história de Pouso Alegre tem início no despertar econômico da região
do Sul de Minas. No final do século XVI, já sabia-se da existência de
pedras preciosas na região do Rio Verde e Alto do Sapucaí.


As primeiras ocupações na cidade iniciam-se no século XVIII por João
Silva. De acordo com o Almanaque Sul-Mineiro (1984): “Segundo tra-
dição que se tem conservado, quem primeiro habitou às margens do
Mandu foi o aventureiro de nome João da Silva”.


Este homem prosperou com sua lavoura e doou uma parte de sua ter-
ra para a construção de uma igreja dedicada ao Senhor Bom Jesus, e
foi com a ajuda de voluntários que conseguiu finalizá-la em 1795, ano
em que foi realizada a primeira missa pelo Padre Francisco Andrade de
                                                                                       Fig. 1 - Mercado Municipal em 1893
Melo.

                                                                                       Fig. 2 - Pouso Alegre 1855. Av. do Imperador, atual Av. Dr. Lisboa.
Por volta de 1810 o povoado foi emancipado à categoria de Freguesia,
e no dia 6 de Novembro do mesmo ano foi criado por “Alvará Regió”1 o
Distrito de Pouso Alegre, e o Município foi desmembrado do Município
de Campanha por Decreto em 13 de Outubro de 1831. A sede municipal
recebeu foros de cidade no dia 19 de outubro de 1848.


A Lei estadual n° 2 do dia 14 de setembro de 1891 confirmou a criação
do distrito-sede do Município de Pouso Alegre, o qual era composto por
4 distritos: o distrito-sede, Congonhal, Borda da Mata e N. Srª. da Con-
ceição da Estiva (atualemente Estiva). Somente em 12 de dezembro
de 1953 todos os distritos foram desmembrados, havendo atualmente
apenas um: a sede.




1	      O Alvará Régio é um termo jurídico antigo usado para designar um edito real.
                                                                                                                                                             11
2.2. A cidade vitrine



                                                                                        Nas as décadas de 60 e 70, devido às primeiras indústrias e instalação
                                                                                        de diversos empreendimentos de porte, Pouso Alegre muda seu perfil
                                                                                        e passa a se afirmar como um centro de referência no Sul de Minas,
                                                                                        uma cidade próspera que atraía investimentos e se tornava cada vez
                                                                                        requisitada.


                                                                                        Tais modificações serviram para a construção de um discurso que enfa-
                                                                                        tizava para a população de Pouso Alegre a imagem da “cidade vitrine”
                                                                                        e de um lugar cuja prosperidade estava expressa nas ruas, através das
                                                                                        novas construções e dos limites que se expandiam, prevalecendo uma
                                                                                        referência harmoniosa e homogeneizadora em detrimento da multiplici-
                                                                                        dade da cidade, heterogênea, plural (MATOS, 2002, apud Assis, 2005).

Fig. 3 - Nova catedral em construção, 1961            Fig. 4 - Estátua de Fernão Dias
                                                                                        Muitas obras foram feitas, como a Catedral Metropolitana (1961), a Fa-

Fig. 5 - Faculdade de Direito do Sul de Minas, 1962
                                                                                        culdade de Direito do Sul de Minas (1962) e o primeiro Terminal Rodovi-
                                                                                        ário (1969). Este, considerado um edifício de suma importância, pois era
                                                                                        visto como expressão de mudança e exemplo de um novo tempo para
                                                                                        Pouso Alegre, recaindo sobre ele a função de refletir todo o progresso
                                                                                        que o município desfrutaria a partir de seu “surto de desenvolvimento”
                                                                                        (GOUVÊA, 1998, apud Assis, 2005), para o que a localização geográfica
                                                                                        foi amplamente apontada pelos jornais como a responsável por fazer da
                                                                                        cidade “o maior centro rodoviário do sul de Minas, com um movimento
                                                                                        de mais de 130 horários de ônibus diários”. (Jornal o Linguarudo. Pouso
                                                                                        Alegre, 03 dez. 1969)


                                                                                        Nessa época havia inúmeros prostíbulos na cidade. Estes se concentra-
                                                                                        vam nas áreas centrais, próximos à rodoviária. Com a inaguração desta,
                                                                                        em 19 de Outubro de 1969, não era mais tolerável a existência de algo
                                                                                        tão degradante. Sendo assim, proíbiu-se o funcionamento de todos eles,
                                                                                        evitando que também se tornassem cartão postal de Pouso Alegre.
                                                                                                                                                             12
2.3. A produção capitalista e os bairros periféricos



A população de Pouso Alegre, em 40 anos apresentou considerável                         à morfologia da cidade, que se resulta de um sistema hierárquico, no
crescimento, passando de 34.485, em 1970, para 130.586, no ano de                       qual existem diversos contextos urbanos e disparidades sociais muito
2010 (IBGE). O panorama vivido durante essas décadas é o fator deter-                   fortes, excluindo as classes menos favorecidas, que sem quaisquer al-
minante que direcionou a cidade a consolidar a sua importância.                         ternativas, se aglomeraram em espaços mais vulneráveis à ações antró-
                                                                                        picas que resultam em desastres naturais.
             “Neste período, foram significativas as transformações econômicas e so-

             cioespaciais que incidiram na área urbana municipal, em especial no se-

             tor sul, que recebeu importantes e diversificados investimentos públicos

             e privados. Este processo fez com que o bairro São Geraldo, que ante-

             riormente era considerado como periférico, passasse a integrar a área

             central da cidade. Apesar disto, seu processo de adensamento ocorreu

             notoriamente sem planejamento, na várzea do rio Mandú, o que implica

             em freqüentes alagamentos. (BARBOSA; ANDRADE; SANTOS, 2011).



Mais uma vez, o bairro São Geraldo serve como exemplo da resultan-
te de interesses políticos e econômicos que nortearam o processo de
urbanização da cidade. A grande quantidade de mão-de-obra barata e
a proximidade com os grandes centros urbanos proporcionaram o de-
senvolvimento de indústrias e consequentemente novas áreas, as quais
foram se consolidando - em especial este bairro - de forma precária e
desordenada.


O êxodo rural das últimas décadas também é um fator relevante para a
compreensão do desenvolvimento do bairro. Segundo o IBGE (2007),
a taxa de urbanização da cidade era maior que a do estado de Minas
Gerais. Enquanto este apresentava de 82% da população residindo na
área urbana, Pouso Alegre obtinha 91%.


A maioria desta população teve o setor de serviços e a indústria como
                                                                                        Fig. 6 - Em 2011, o bairro São Geraldo foi a principal vítima das chuvas, devido à sua loca-
forma de trabalho. Este aspecto econômico está intrinsecamente ligado                   lização em uma área de várzea e à ausência de um sistema de captação de águas pluviais.
                                                                                                                                                                                       13
3. PLANO DIRETOR
3.1. Análise Geral



O Plano Diretor de Pouso Alegre foi elaborado em 2008 pela Prefeitura                     Zona Mista 2 (ZM 2) - corresponde às áreas de média densidade, com

Municipal e é responsável pelo zoneamento do município e por identi-                      ocupação caracterizada por usos múltiplos como residências uni e multi-

ficar áreas com características peculiares, traçando diretrizes para as                   familiares, comércio, serviços e uso institucional, sendo possível a insta-

mesmas.                                                                                   lação de usos multifamiliares, institucionais, comerciais e de serviços de

                                                                                          atendimento local, onde devem ser aplicados parâmetros de ocupação

Para Silva [ca. 2009], mesmo que o Plano Diretor apresente algumas                        que impeçam o processo de adensamento para garantir as condições de

estratégias para o desenvolvimento econômico e obtenha diretrizes ge-                     conforto ambiental e qualidade de vida existentes, com impedimento de

rais e específicas para a promoção do desenvolvimento social de Pouso                     fracionamento de lotes;

Alegre, seu foco é ordenar o território do município e qualificar a admi-
nistração para coordenar o processo de implantação e gestão do Plano.                     Zona Especial de Interesse Social (ZEIS) - corresponde às áreas ocupa-

                                                                                          das por população pertencente aos estratos de menor renda nas quais

O área urbana é composta pelas seguintes macrozonas:                                      há interesse público em ordenar a ocupação, por meio de regularização

                                                                                          urbanística e fundiária ou reassentamento, assim como aquelas onde o

             “Zona Mista Central (ZMC) - corresponde às áreas do centro tradicio-         Poder Público tem interesse em implantar novos empreendimentos habi-

             nal da cidade, onde se situam o comércio e as atividades de prestação        tacionais de interesse social, segundo parâmetros específicos definidos

             de serviços de atendimento geral, com ocupação caracterizada por usos        pela Lei de Uso e Ocupação do Solo e programas de regularização, sen-

             múltiplos como residências uni e multifamiliares, comércio, serviços e uso   do:

             institucional, sendo possível a instalação de usos multifamiliares, insti-   ZEIS 1 - áreas ocupadas por população pertencente aos estratos de me-

             tucionais, comerciais e de serviços de atendimento local e geral, com        nor renda, as quais deverão ser objeto de programas de regularização

             medidas de contenção do processo de verticalização;                          urbanística e fundiária e/ou reassentamento, quando for o caso;

                                                                                          ZEIS 2 - áreas destinadas ao reassentamento de população em área de

             Zona Mista 1 (ZM 1) - corresponde às áreas urbanas em que predomina          risco ou em áreas de proteção ambiental;

             a ocupação residencial unifamiliar de baixa densidade, sendo permiti-        ZEIS 3 - áreas destinadas a novos empreendimentos habitacionais de

             dos usos residenciais unifamiliares e usos institucionais e econômicos       interesse social.

             de atendimento local, onde devem ser aplicados parâmetros de uso e

             ocupação que permitam manter as condições de conforto ambiental e            Zona Mista de Verticalização (ZMV) - corresponde às áreas mistas de

             qualidade de vida existentes;                                                alta densidade, onde serão permitidos processos de verticalização e usos

                                                                                          multifamiliares, institucionais, comerciais e de serviços de atendimento

                                                                                          local e geral (...).



                                                                                                                                                                        15
Zona de Empreendimentos de Porte (ZEP) - corresponde às áreas ocu-

            padas pelo Distrito Industrial, por grandes indústrias, por equipamentos

            de grande porte e aquelas onde serão permitidos usos econômicos e

            empreendimentos de maior porte conflitantes com o uso residencial, cuja

            instalação e funcionamento deverão ser precedidos de licenciamento am-

            biental fundamentado em estudos de impacto ambiental e urbanístico,

            conduzidopelo setor competente da Prefeitura Municipal;



            Zona de Expansão Urbana (ZEU) - corresponde às áreas ainda vazias

            dentro do perímetro urbano e propícias à ocupação, pelas condições do

            sítio natural e possibilidade de instalação de infra-estrutura, respeitando-

            se as Áreas de Preservação Permanente (APP) previstas na legislação

            ambiental e aquelas com declividade acima de 30%, com a classificação

            preliminar ZM 2;” (Plano Diretor. Pouso Alegre. 30 de Junho de 2008)



Nas Áreas áreas de Interesse Especial (AIE), as diretrizes prevalecem
sobre às do Macrozoneamento. São elas:


            “I. Áreas de Interesse Urbanístico (AIU) - correspondem às áreas destina-

            das a intervenções específicas, visando a melhoria da estruturação urba-

            na municipal, possibilitando uma requalificação e revitalização do centro

            urbano e de outras centralidades identificadas pelo planejamento local,

            compreendendo três categorias (...).



            II. Áreas de Interesse Urbanístico-Ambiental (AIUA) - correspondem às

            áreas ocupadas ou em processo de ocupação que apresentam potenci-              LEGENDA - MACROZONEAMENTO

            ais riscos ambientais (...). (Plano Diretor. Pouso Alegre. 30 de Junho de

            2008)



                                                                                                                       Fig. 7 - Plano Diretor 2008

                                                                                                                                                     16
III. Áreas de Interesse Cultural (AIC) - correspondem às áreas compro-

             metidas com a preservação da cultura e história do Município e de seus

             habitantes, exigindo a adoção de medidas e parâmetros destinados à sua

             preservação, destacando-se a AIC Centro, correspondente ao núcleo do

             centro tradicional da cidade”. (Plano Diretor. Pouso Alegre. 30 de Junho

             de 2008).



O terreno escolhido para o projeto localiza-se nos limites na Zona de
Empreendimento de Porte, Zona Mista Central (Fig.8) e Zona Mista 2.


Na ZEP, a classificação da macrozona identifica apenas construções já
existentes, que correspondem a atual rodoviária, o 14° GAC (Grupo de
Artilharia de Campanha) e suas adjacências. Visto que nas ZEPs é per-
mitido a construção de grandes empreendimentos, como indústrias, por
exemplo, torna-se conflitante esta classificação com o restante do entor-
no. Tais edificações, se construídas nesta área, ocasionariam uma seg-
regação ainda maior no tecido urbano entre os dois lados do rio Mandú.


Outro fator conflitante é a localização da ZM 2 nas margens do mesmo                    Fig. 8 - Plano Diretor na área de intervenção
rio. Por ser uma área de várzea, esta deveria ser classificada como uma
Zona de Proteção Ambiental (ZPA), de forma a preservar a mata ciliar e
minimizar os impactos ambientais.


Nota-se portanto, que o Plano Diretor tem uma leitura e um posiciona-
mento deficiente em diversos aspectos. As macrozonas são classifica-
das apenas pelas condições atuais de organização urbana, aquém de
uma reestruturação de áreas que se econtram mais fragilizadas.




                                                                                                                                        17
Fig. 9 - Zona Mista de Verticalização
                              (ZMV) - Centro de Pouso Alegre

                              Fig. 10 - Zona de Empreendimentos de
                              Porte (ZEP)- Rodoviária Municipal

                              Fig. 11 - Zona Mista 2 (ZM 2) - Bairro Fáti-
                              ma I

                              Fig. 12 - Zona Especial de Interesse So-
                              cial III (ZEIS 3) - Bairro Bandeirantes II




Fig. 9    Fig. 10




Fig. 11             Fig. 12

                                                                      18
Fig. 13 - Zona Especial de Interesse So-
                              cial 1 (ZEIS 1) - Bairro São Geraldo

                              Fig. 14 - Zona de Proteção Ambiental 5
                              (ZPA 5) - Rio Mandú

                              Fig. 15 - Área de Interesse Urbanístico e
                              Ambiental 3 (AIUA 3) - Aeroporto

                              Fig. 16 - Zona Mista 2 (ZM 2) Galeria PA
                              Shopping.




Fig. 13             Fig. 14




Fig. 15   Fig. 16

                                                                    19
4. ÁREA DE INTERVENÇÃO
4.1. Análise da área de intervenção



4.1.1. Região Central                                                       - Maior parte das calçadas encontram-se precárias e sem acessibilidade;
                                                                            - Ruas muito estreitas;
O centro de Pouso Alegre é a área mais tradicional e a mais densamente      - Comércio ambulante ocupando calçadas;
habitada. Apresenta uma alta concentração de estabelecimentos comer-        - Frequentes congestionamentos.
ciais e de prestação de serviços por toda sua extensão.


A Av. Doutor Lisboa é o setor comercial mais importante da cidade, junto
à Rua Comendador José Garcia, além de também possuir grande parte
dos edifícios históricos tombados pelo Patrimônio Cultural. Suas qua-
dras são classificadas pelo Plano Diretor como Áreas de Interesse Cul-
tural (AIC) - que “correspondem às áreas comprometidas com a preser-
vação da cultura e história do Município e de seus habitantes, exigindo
a adoção de medidas e parâmetros destinados à sua preservação (...)”.
(Plano Diretor. Pouso Alegre. 30 de Junho de 2008)


Pelo fato de o centro ser a região mais antiga da cidade e ter se desen-    Fig. 17 - Teatro Municipal na Av. Dr. Lisboa. Inaugu- Fig. 18 - Antigo Fórum Municipal localizado no cen-
                                                                            rado em 1875, foi tombado pelo Patrimônio Cultural tro da cidade
volvido sem um projeto urbanístico, a maior parte de suas ruas são es-
treitas e de difícil locomoção de veículos, o que gera transtornos quanto
à disponibilidade de estacionamentos e locomoção dos transeuntes.


A partir de frequentes visitas em campo, foram classificados os princi-
pais problemas da área:


- Ausência de infraestrutura para atender o Sistema de Transporte Pú-
blico Municipal;
- Vazios urbanos em áreas com grande potencial urbanístico;
- Desarticulação entre a área central e suas proximidades;
- Espaços públicos de lazer quase inexistentes;


                                                                            Fig. 18 - Conservatório Municipal        Fig. 19 - Rua Comendador José Garcia

                                                                                                                                                                                 21
Além das ruas comerciais já mencionadas, existem três grandes con-                  4.1.2 Mercado Municipal
glomerados de comércio popular da cidade - arredores do Terminal
Rodoviário, Mercado Municipal e Avenida Duque de Caxias. Esses es-                  O edifício sofreu inúmeras reformas ao longo do tempo que o descarac-
paços, há décadas “eram cedidos para comerciantes sem que fossem                    terizou. Localiza-se próximo a Catedral Municipal e ocupa 100% uma
respeitados critérios legais”(Prefeitura Municipal. Pouso Alegre. 2012).            quadra de aproximadamente 1600m². Não existe área adequada para
Apenas neste ano, foi realizada a legalização dessas permissões, at-                carga e descarga de mercadorias, o que gera freqüentes congestiona-
ravés de uma série de licitações para a liberação de outorgas de per-               mentos no local.
missão para atuação nesses setores.
                                                                                    O “Mercadão”, como é conhecido, deixou de ser apenas um lugar para
                                                                                    as compras de hortifrutigranjeiros e se tornou um ambiente famoso de-
Fig. 20 - Mapa dos 3 conglomerados de comércio popular                              vido ao delicioso pastel de farinha de milho, que é o atrativo principal da
                                                                                    culinária local. Além do comércio de alimentos, também são encontra-
                                                                                    das lojas de roupas, calçados e artigos em geral.


                                                                                    O primeiro Mercado da cidade localizava-se no mesmo terreno do atual.
                                                                                    Inaugurado em 1895, consistia em uma cobertura sobre um espaço de
                                                                                    livre transição entre seu interior e exterior. Em ambos espaços, ocorria a
                                                                                    venda de mercadorias, como pode ser observado na figura 20. As adap-
                                                                                    tações no edifício ao longo do tempo tornaram-o mais fechado e sem
                                                                                    integração com seu entorno.




  1 - Mercado Municipal         2 - Av. Duque de Caxias   3 - Terminal Rodoviário

                                                                                                                                                                  23
Fig. 21 - Mercado em 1895   Fig. 22 - Mercado na década de 1990




Fig. 23 - Mercado em 1935   Fig. 24 - Mercado atualmente

                                                                  24
4.1.3. Avenida Duque de Caxias


A Avenida Duque de Caxias é o local onde se localiza o principal ponto
de partida e chegada dos ônibus municipais de Pouso Alegre. Milhares
de pessoas circulam diariamente na área e esta também se consolidou
como uma importante região do comércio popular da cidade.


Nos canteiros centrais da avenida existem quiosques de comércio varia-
do. Diversas lanchonetes e lojas no piso térreo de sobrados e edifícios-
também compõem o cenário local.


O sistema de transporte municipal é feito pela Viação Princesa do Sul.
Os ônibus atendem tanto as áreas centrais, quanto os bairros mais dis-
tantes e a zona rural. Dezenas de ônibus estacionam na sarjeta para
                                                                            Fig. 25 / 26 - Vista do interior do Mercado Municipal
embarque e desembarque de passageiros. O terminal improvisado de-
limita-se com residências, comércio, praça, etc. Não existe nenhuma
proteção, segurança e acessibilidade para as pessoas que aguardam o
embarque, trazendo transtorno para todos que transitam e intensificando
o tráfego de veículos. Além da região central, a rodoviária é outro local
importante de parada dos ônibus municipais, porém, também não apre-
senta infraestrutura adequada a esta finalidade.




                                                                            Fig. 27 - Av. Duque de Caxias - pessoas aguardam a chegada dos ônibus

                                                                                                                                                    25
4.1.4. Terminal Rodoviário


                                                                                                  Inaugurado em 1991, foi o segundo Terminal Rodoviário a ser constru-
                                                                                                  ído em Pouso Alegre. Está localizado na área central entre a Avenida
                                                                                                  Levino Ribeiro do Couto e a Avenida Antônio Mariosa. Segundo o site da
                                                                                                  Prefeitura (2011), conta com 447 horários de partidas e circulam diaria-
                                                                                                  mente pelo terminal aproximadamente 7.500 pessoas, sendo que 2.300
                                                                                                  embarcam para outros destinos.


                                                                                                  Atualmente, 12 empresas de transporte coletivo operam no terminal:
                                                                                                  Gardênia, Cambuí, Bragança, Santa Terezinha, Santa Cruz, Mantiquei-
                                                                                                  ra, Pássaro Marron, Frota Nobre, 1001, Gontijo, Bel-Tour e Cometa. Há
                                                                                                  serviço 24 horas de lanchonetes, guarda-volumes, táxi, sanitários e far-
Fig. 28 - Av. Duque de Caxias - ponto de ônibus
                                                                                                  mácia.1


                                                                                                  O edifício do Terminal Rodoviário é composto por um pavimento térreo e
                                                                                                  ocupa uma área de 4.700 m². De acordo com o MITERP (1976)2, pode-
                                                                                                  ria ser classificado como um terminal de classe C, devido aos seguintes
                                                                                                  parâmetros:


                                                                                                   CLASSE        Número mé- N ú m e r o       Número de      Número de     N ú m e r o
                                                                                                                 dio de parti- máximo de      Platafor-      Plataformas   m á x i m o
                                                                                                                 das diárias   partidas si-   mas de em-     de desem-     possível
                                                                                                                               multâneas      barque         barque        de partidas
                                                                                                                                                                           diárias
                                                                                                   C             251 a 500      13 a 25       15 a 30        5 a 10        1004 a 2000



                                                                                                  1	        Informações retiradas do site http://www.pousoalegre.mg.gov.br/rodoviaria 	
                                                                                                  	         (Outubro 2011)
                                                                                                  2	        O MITERP - Manual de Implantação de Terminal Rodoviário de Passageiros - foi
                                                                                                  elaborado em 1976 com o objetivo de sistematizar uma metodologia para a implantação e
                                                                                                  elaboração de projetos de Terminais Rodoviários, classificando os terminais em diversas
                                                                                                  categorias. Apesar de alguma defasagem, ainda é utilizado para a construção de grandes
Fig. 29 - Igreja Sagrado Coração de Maria         Fig. 30 - Tráfego nas proximidades do Mercado   rodoviárias no país.
                                                                                                                                                                                            26
Fig. 31 - Plataformas de embarque do Terminal Rodoviário                            Fig. 32 - Instalações precárias e pouca iluminação no inteiro da rodoviária   Fig. 33 - Bilheterias




Fig. 34 / 35 - A falta de manutenção acarretou perda de parte do forro em alguns locais                                                  Fig. 36 - Improvisos no piso na área de despacho de mercadorias.

                                                                                                                                                                                                            27
O Terminal possui 15 plataformas de embarque e desembarque e apre-           Durante o dia, os venderores ambulantes instalam suas barracas próxi-
senta um pico de partidas nos dias de sexta-feira e em vésperas de           mas ao acesso do Terminal, na Avenida Levino Ribeiro do Couto, pois é
feriado.                                                                     intenso o fluxo de pedestres nesta área. À noite, a região torna-se vazia,
                                                                             com execessão de alguns traillers de lanches que funcionam nas proxi-
Apesar de ter sido construído há apenas 21 anos, seu estado de conser-       midades. Neste período, a área se torna perigosa, pois a prostituição e
vação é precário, com o forro deteriorado em alguns locais, iluminação       o tráfico de drogas se afirmaram nos arredores.
deficiente, etc. Além disso, possui uma fiscalização ineficaz, acarretanto
um alto número de pedintes e vendedores ambulantes.                          Dessa forma, conclui-se que a grande disponibilidade de espaços va-
                                                                             zios gera uma subutilização de todo o complexo. Além de gerar este
O entorno é composto por amplos espaços vazios, que são utilizados           conflito, o vazio urbano resulta na falta de integração com o restante da
esporadicamente para diversos eventos. A feira popular mais famosa           região central e de outros bairros da cidade, principalmente o Bairro São
da cidade ocorre aos domingos, no pátio do terminal. Além desta feira,       Geraldo. O entorno do Terminal Rodoviário funciona atualmente como
realiza-se no local a Feira das Nações, evento com comidas típicas de        uma fronteira, porém, é uma área que apresenta um forte potencial para
vários países, shows musicais, sorteios de brindes e bingos, anualmente      a cidade, capaz de requalificar seu tecido e seus respectivos espaços
no mês de Agosto.                                                            públicos.


Ao lado do pátio da rodoviária, existe um terreno baldio da Prefeitura do
Município, a qual o aluga para parques de diversões itinerantes, circos
e eventos em geral. Porém, na maior parte do tempo, este terreno en-
contra-se vazio e inacessível aos pedestres, pois é cercado por muros.


A praça existente em frente ao terminal também é muito pouco frequen-
tada. Em contrapartida, é o único espaço da cidade que possui pista
para esportes radicais, o que faz com que seja utilizada apenas para
estes fins.




                                                                                                                                                          28
Fig. 37 - Imagem de satélite mostra a feira de domingo nas ruas perimetrais do Terminal Rodoviário   Fig. 38 - Pátio da rodoviária torna-se vazio na ausência de eventos.




Fig. 39 - Feira das Nações em 2011                                                                   Fig. 40 - Parque de diversões no terreno da Prefeitura
                                                                                                                                                                            29
Av. Duque de Caxias   Mercado Municipal   Catedal   Rodoviária   Pátio da Rodoviária   Terreno da Prefeitura   Bairro São Geraldo




                                                                                                                                    30
Comércio e serviço              Uso misto                      Uso residencial   Institucional   Áreas verdes   Indústrias




Fig. 41 - mapa de uso e ocupação do solo na área de intervenção                                                                 31
5. PROPOSTA
5.1. Conceito geral



O projeto parte das premissas de reestruturação de uma área subutiliza-         O terreno que anteriormente apresentava uma área de aproximadamen-
da para a criação de uma nova centralidade em Pouso Alegre. A partir            te 33.260 m², passa a possuir 45.350 m². Com uma significativa área dis-
de um plano de massas que dará suporte a um futuro projeto de maior             ponível, tornou-se viável a reconstrução do Mercado Municipal e do Ter-
escala, optou-se como ponto de partida o Terminal Rodoviário, Urbano            minal Urbano junto à rodoviária. Além disso, também foram propostos:
e Mercado Municipal.
                                                                                - Criação de um Parque entre os bairros São Geraldo e a área central,
O terreno baldio da Prefeitura foi agregado a área (Fig. 43). O objetivo        preservando as margens do Rio Mandu e criando novos espaços de
foi aumentar os espaços públicos que realmente pudessem ser usufru-             lazer;
ídos e ampliar a capacidade construtiva do local. Também foi proposta           - Desapropriação das áreas ocupadas irregularmente nas margens do
a abertura de uma nova rua que dará continuidade à Rua Pedro Adão,              rio;
classificada pelo Plano Diretor como uma via coletora.                          - Criação de um eixo de pedestre (calçadão e passarela) interligando o
                                                                                Parque ao centro;
                                                                                - Continuação da malha urbana e relocação da população em um terre-
                                                                                no vazio localizado na Av. Antônio Mariosa.




                                                                                Fig. 43 - Mapa do terreno proposto




                                                                                                                                     Área agregada
                                                                                                                                     Terreno do projeto
                                                                                                                                     Proposta para nova rua
                                                                                                                                     Rodovia Interestadual
                                                                                                                                     Vias arteriais
                                                                                                                                     Vias coletoras

                                             Fig. 42 - Mapa do sistema viário                                                        Dique II

                                                                                                                                                              33
5.1.1 - Plano de Massas para o entorno                                     O edifício do atual Mercado será demolido e substituído por uma praça
                                                                           que conectará os espaços livres da área central. Além disso, a ampliação
A requlificação do centro de Pouso Alegre foi pensada como um projeto      e reformulação dos canteiros da Av. Duque de Caxias proporcionarão a
que poderá ser feito em etapas e que aos poucos desenvolverá novas         criação de um comércio ao longo deste espaço, como, por exemplo,
relações intra-urbanas em todo o entorno. O principal elemento pensado     ocorre nas ramblas1 de Barcelona. Os canteiros terão em média 13,60m
para isto foi o caminho do pedestre.                                       de largura, dimensão suficiente para este propósito.


Através da análise do sistema viário e do uso e ocupação do solo, op-
tou-se por criar um calçadão em toda a extensão da Rua Bueno Brandão.
Partindo da Avenida Duque de Caxias, este conectará o centro consoli-
dado até a nova centralidade.


“O que define uma centralidade é o movimento pelas vias - os fluxos -,
ou seja, a circulação contínua de consumidores, trabalhadores, automó-
veis, mercadorias, informações e idéias; a presença desses elementos
e suas dinâmicas dão função aos espaços e definem territórios”. (MILA-
NI;SILVA, 2009).


Devido à importância das relações já existentes entre os conglomerados
de comércio popular na cidade, que estão intrinsecamente ligados ao
sistema de transporte público, a mesma lógica foi pensada para o atual
projeto. Relocou-se o antigo mercado e junto a ele foi criado o terminal
urbano, com infraestrutura necessária para servir os milhares usuários
do transporte coletivo.




                                                                           Fig. 44 - Rambla de Barcelona

                                                                           1	         Rambla é um tipo de rua larga e com grande movimentação de pedestres típica
                                                                           da Catalunha, na Espanha. A mais conhecida das ramblas é a Rambla de Barcelona, que
                                                                           liga a Praça da Catalunha ao Porto Velho.
                                                                                                                                                                    34
1




                                 2




                                                          Desapropriações


                                                          As edificações acima serão desapropriadas para
                                                          a criação do novo parque. O local frequentemente
                                                          sofre com inundações devido a proximidade do Rio
                                                          Mandu. O objetivo é reassentar os edifícios na área
                                                          5 (cinco).




5




                                                  3


                                                          01 - Requalificação de Av. Duque de Caxias

                                                          02 - Calçadão na Rua Bueno Brandão

                                                          03 - Centralidade
                                        4
                                                          04 - Parque Municipal

                                                          05 - Expansão da malha urbana
    Fig. 45 - Plano de Massas para Pouso Alegre                                                           35
836,20



                                                                                                                                                                                                                              AVEN
                                                                                                                                                                                                                                     IDA D
                                                                                                                                                                                                                                          UQUE
                                                                                                                                                                                                                                                 DE C
                                                                                                                                                                                                                                                     AXIAS


                                                                                                                                                                                                         835,80
                                                                                                                                                        829,80                                                                                                   841,10
                                                                                                                                                    S                                          Fig. 47
                                                                                                                                              CAXIA
                                                                                                                                      UE DE
                                                                                                                                 A DUQ
Fig. 46 / 47 - Antes e depois - Proposta para Av. Duque de Caxias
                                                                                                                           AVENID

                                                                                                                                                                                           S
                                                                                                                                                                                      CAXIA
                                                                                                              834,70                                                       DUQUE DE                                   AVEN
                                                                                                                                                                   AVENIDA                                                   IDA D
                                                                                                                                                                                                                                  UQUE
                                                                                                                                                                                                                                         DE C
                                                                                                                                                                                                                      ESTA                   AXIAS
                                                                                                                                                                                                                          CION
                                                                                                                                                                                                                                 AMEN
                                                                                                                                                          829,50                                                                       TO




                                                                                                                                                                                                                                                             833,30
                                                                                                               834,70




                                                                    Fig. 48 - ÁREA 1 - NOVA PRAÇA NA AV. DUQUE DE CAXIAS                                                                                                                                                  35
                                                                           Escala: 1 / 500
Fig. 49 - CORTE 1_1     37
         Esc: 1 / 150
A proposta é criar quiosques comerciais padronizados, utilizando boxes metálicos de três
                      cores distintas. O cubo metálico poderá abrir totalmente por um sistema de portas bas-
                      culantes dobráveis, proporcionando um sistema prático e que se destacará na paisagem




Fig. 50 - CORTE 2_2                                                                                        38
Esc: 1 / 150
Fig. 52   Fig. 53




Fig. 51                                        Eixo de pedestres
                                               Conexão entre as áreas livres
O eixo de pedestres, como mostra a Fig. 51 se conectará à centralidade
através de uma rua com piso diferenciado, além de ser adotada uma
iluminação pública na escala do pedestre. Grande parte dos edifícios
desta rua são escolas e o trânsito se torna intenso nas proximidades
durante o horário de saída dos alunos. Isso gera um conflito entre pe-
destre e automóvel. Com a delimitação de locais distintos para o trânsito
dos mesmos, será possível obter mais segurança para os pedestres e
principalmente para os alunos que circulam na área.


Este espaço, junto aos canteiros da Av. Duque de Caixas, também supri-
rá a carência de áreas como os calçadões, que são quase inexistentes
na cidade. As figuras 52, 53, e 54 mostram a Rua Bueno Brandão atu-
almente, na qual as calçadas são muito estreitas, trazendo insegurança
principalmente para as crianças.                                               Fig. 54

                                                                                                   39
827,40   825,20   823,30
                                                                                                                                    830,40
                                                                      834,70                                      832,80   830,90
                                                                                       Fig. 55




Fig. 55 - Perspectiva do novo calçadão na Rua Bueno Brandão
        Escala: 1 / 750
                                                              Fig. 56 - ÁREA 2 - NOVO CALÇÃDÃO R. BUENO BRANDÃO                                                         39
                                                                     Escala: 1 / 750
DET. 1




Fig. 57 - CORTE 3_3 OU
              AREIA MÉDIA
                                          BLOCO
                                                                         Fig. 58 - CORTE 3_3
                  GROSSA DE BASE E
Esc: 1 / 150      REAJUNTAMENTO
                                          INTERTRAVADO                   Esc: 1 / 150
                 AREIA MÉDIA OU
                                          BLOCO
                 GROSSA DE BASE E
                                          INTERTRAVADO
                 REAJUNTAMENTO

 PEDRISCO



PEDRISCO                                                     CONTENÇÃO
    SOLO                                                     LATERAL                                                      827,40   825,20   823,30
                                                                                                                 830,40
                                                                             834,70            832,80   830,90




                                                             CONTENÇÃO
    SOLO                                                     LATERAL




            Fig. 59 - DET. 1 - PISO INTERTRAVADO - ASSENTAMENTO
            Esc: 1 / 150                                                                                                                    41
Fig. 60 - Calçadão em Londrina - PR                     Fig. 61 - Calçadão em São Paulo - SP                            Fig. 62 / 63 - Calçadão na cidade de Pouso Alegre




              O Parque Municipal ocupará a faixa entre a Avenida Antônio Mariosa e             Os limites do Parque foram estipulados até o perímetro do Dique II, que
              as margens do Rio Mandú. A cidade não possui um parque central, além             está sendo contruído e tem as seguintes finalidades:
              de ter poucas áreas verdes no perímetro urbano. Com o novo equipa-
              mento público haverá a aproximação dos habitantes do centro e prin-                            “A construção do Dique II garante a proteção de enchentes para mais
              cipalmente do bairro São Geraldo com a educação ambiental e com o                              de 650 famílias que vivem nas regiões dos bairros São Geraldo, Shan-

              lazer. O objetivo também é preservar a mata ciliar do Rio, que se encon-                       gri-lá, Costa Rios, Foch, Jardim Olímpico, São Carlos e Árvore Grande.

              tra ameaçada devido a construções irregulares e pela própria proposta                          A licença ambiental, engloba todo o sistema de contenção de enchentes

              do Plano Diretor, que classifica suas proximidades como Zona Mista 2.                          composto, em sua totalidade, por cinco diques. O projeto inicial previa

                                                                                                             a construção de uma avenida partindo da rotatória da rodoviária. ‘Hoje,

              Para a criação do Parque, será necessária a desapropriação de algumas                          temos um projeto completo de diques para solucionar, de verdade, o pro-

              construções localizadas próximas ao rio. Essa população será reloca-                           blema das enchentes’ explicou o secretário Maurício Sales. (...)”. (MG Sul

              da no terreno oposto ao da rodoviária, que também encontra-se vazio.                           News, ca. 2011)1.

              Propõe-se a alteração da área no Plano Diretor, que atualmente é clas-
              sificada como ZEP, para se tornar uma ZM 2. O ocupação desta área co-
              nectará o centro da cidade ao bairro Jardim Yara, proporcionando uma
              continuidade no tecido urbano fragmentado.

                                                                                               1	http://www.mgsulnews.com.br/meio-ambiente/1648-tecnicos-da-unifei-apresen-
                                                                                               tam-projeto-da-dique-ii-de-pouso-alegre.html
                                                                                                                                                                                          42
5.2. - Terminal Rodoviário, Urbano e Mercado Municipal



5.2.1. Partido Arquitetônico


O que norteou o partido do projeto foi a criação de espaços que se inter-
relacionam em diferentes níveis. No pavimento térreo, que se encontra
no mesmo nível da Avenida Antônio Mariosa, foi criado o terminal urbano
e o setor de embarque e desembarque da rodoviária, além dos serviços
de apoio como táxis, estacionamentos, guarda-volumes, sanitários, etc.


Este nível possui uma praça voltada para esta mesma avenida. As árvo-
res já existentes foram preservadas e foi possível a criação de um amplo
espaço multiuso, com áreas sombreadas, abertas, de piso gramado e
com textura em madeira ou em bloco intertravado, além de playground
e pista da skate.


O edifício é todo perméavel e pode ser acessado tanto pelo térreo quan-
                                                                             Fig. 64 / 65 - No novo Aeroporto de Montevidéu, o arquiteto Rafael Vignoli enfatiza as áreas públicas exploran-
to pelo segundo pavimento. A disposição do bloco da rodoviária e do          do ao máximo o aproveitamento de luz natural. A estrutura metálica sustenta uma grande cobertura em curva
terminal urbano foi realizada de forma a aproveitar o maior sentido do
terreno, enquanto o mercado se dispõe perperdicularmente a este.


Foi pensado um sistema misto para a estrutura do edifício, modulada
por pilares de concreto que vencem vãos de 15 metros e sustentam as
lajes nervuradas em concreto protendido. Na cobertura, estes pilares
embasam uma estrutura espacial metálica, a qual apresenta uma gran-
de área vedada por policarbonato transparente, explorando a entrada de
luz natural em todo o edifício. Pensou-se no conceito de planta livre para
a possíbilidade de alteraração do layout de todo o complexo conforme às
futuras necessidades.




                                                                                                                                                                                        43
Telhas metálicas na cor cinza escuro vedam o volume do mercado que
se destaca e o torna diferenciado. Para o bloco dos terminais, o fecha-
mento será feito por painéis de chapa perfurada, que devido à sua per-
meabilidade, transformarão o edifício em uma grande caixa iluminada
durante à noite.


Em todas as partes será possível a integração com o entorno. Uma pas-
sarela será o elemento principal desta integração: ela partirá do final
da Rua Bueno Brandão e permeará o complexo pelo terceiro piso, ras-
gando o bloco principal e conectando-o diretamente ao novo parque.
Vilanova Artigas também utiliza no Terminal Rodoviário de Jaú (Fig. 66
                                                                           Fig. 66 / 67 - Situada em área central da cidade, o projeto aproveita inteli-
e 67) uma passarela como elemento de conexão entre o edifício e duas       gentemente a diferença de 6m nas cotas entre duas ruas paralelas, volta-
ruas paralelas. Para Hazan (2007) a passarela é responsável por costu-     das para praças, para organizar os acessos e percursos realizados interna-
                                                                           mente por meio de rampas, permitindo a passagem livre de pedestres, sem
rar as fraturas urbanas, ou seja, espaços fragmentados que podem ser       interferência com as plataformas de ônibus situadas em cota de altura intermediária.

reestruturados criando-se novas espacialidades, tornando mais sólidas
as intervenções realizadas nos espaços públicos de importância, que
consequentemente, se relacionarão com os espaços marginais.


Para Borja e Muxí (2003), a passarela enquanto espaço público siginifica
oportunidade de ocupação de um espaço residual entre o que está cons-
truído e o espaço viário. A requalificação da área através de um projeto
que preza pela continuidade do percurso do pedestre e oferece espaços
que priorizam a relações humanas, os encontros, as atividades cotidia-
nas é uma opção de projeto urbano que gera espaços de transição de
uso coletivo que respeitam o direito de cidadania.


Com 10 metros de largura, ela não funcionará apenas como um ele-           Com a existência do calçadão e da passarela, ficará mais fácil a loco-
mento de passagem, mas também de diversas atividades. Pretende-se          moção para as áreas centrais da cidade. As figuras a seguir são alguns
com este espaço proporcionar um local para o acontecimento da feira        exemplos de passarelas que admitem usos variados. Ao contrário da
dos dias de domingo, que já ocorre nas adjacências da atual rodoviária.    maioria das passarelas existentes, elas compõem um novo cenário, tor-
                                                                           nando-se lugares de estar, comércio, passagem, e contemplação.

                                                                                                                                                                  44
Fig. 68 - Passarela para pedestres com 106 m de vão, 140 de comprimento, largura variável de 11 a 15           Fig. 69 - O Highline Park foi criado onde antigamente existia uma linha de trem, mas que já estava abandona-
m. Esta passarela construída sobre o rio Sena tem a particularidade de permitir o acesso dos pedestres         da há muitos anos servindo de moradia para mendigos e drogados. Devido a forte pressão do grupo de ami-
a partir de dois níveis: no superior ao ar livre, no inferior uma escada conduz pelo interior da própria       gos do Highline a estrutura original foi mantida, reurbanizada e transformada num parque público municipal.
estrutura metálica, até atingir o tabuleiro superior no centro do arco, onde ambos níveis se encontram.




Fig. 70 - A Ponte Vecchio (Ponte Velha) é uma Ponte em arco medieval sobre o Rio Arno, em Florça, na Itália, famosa por ter diversas lojas ao longo de todo o tabuleiro.

                                                                                                                                                                                                                       45
5.2.2. Programa de necessidades do edifício


O programa do edifício foi pensado para garantir o conforto dos usuários
e foi dimensionado de acordo com os seguintes critérios:


- O Terminal Rodoviário foi dimensionado de acordo com os padrões do
MITERP, e comparado com outros terminais que seguiram as mesmas
diretrizes, como o Terminal de Taubaté, que na época em que foi pro-
jetado (1976), possuia aproximadamente 130.000 habitantes1. Também
foram considerados os levantamentos realizados na atual rodoviária,
onde foram observados o número de plataformas de embarque, número
de guichês, lanchonetes, sanitários, etc.                                              Fig. 71 - Terminal de ônibus municipal em Poços de Caldas


- Para o Terminal Urbano foi estipulado o dobro de plataformas exis-
tentes no principal ponto de ônibus da cidade, o “terminal improvisa-
do”. Além disso, alguns terminais de cidades com tamanho aproximado,
como o da cidade de Poços de Caldas (Fig. 71) serviram de exemplo.


- As dimensões do Mercado Municipal foram dobradas para suprir a falta
de espaços livres que o Mercado atual apresenta. Para a formulação do
programa de necessidades foi feita uma visita técnica no Mercado Muni-
cipal de São Paulo (Fig. 72).


- As dimensões dos espaços livres foram pensadas para suportar uma
gama de atividades possíveis no local, com área de tamanho aproxima-
do ao do antigo pátio da rodoviária



1	       Dados obtidos através da seguinte bibliografia:
LIMA, José Roberto da Costa - Os terminais rodoviários de passageiros do interior do   Fig. 72 - Mercado Municipal de São Paulo
Estado de São Paulo: ontem e hoje. -- São Paulo, 2004;	
                                                                                                                                                   46
PAVIMENTO TÉRREO:


Rodoviária:                                                           Mercado Municipal


6	      Sanitários (2 Masc., 2 Fem. 2 Acess.).		      97,50 m²        1	     Pátio para carga e descarga			   8 vagas
1	      Guarda volume / Achados e perdidos:		         48,75 m²        	(Área de manobra)				600,00 m²
1	      Balcão de informações:				                    11,04 m²        	(Área de recebimento)				729,53 m²
3	      Vestiários func.(1 Masc., 1 Fem. 1 Acess).	   48,78 m²        1	     Casa de máquinas				             27,56 m²
10 	    Vagas para táxis                                              1	     Pista de skate					              1224,00 m²	
2	      Locais para telefones públicos                                		
3	      Quiosques					                                11,04 m² cada   								
19	     Baias para ônibus (embarque e desembarque)                    	
2	      Guaritas para controle dos ônibus		           7,50 m² cada
276 	   Assentos na área de espera			
6	      Lojas e depósitos de encomendas		             12,19 m² cada
	       Embarque e desembarque (veículo particular)


Terminal Urbano


10	Sanitários (4 Masc., 4 Fem. 4 Acess.)		            120,00 m²
4	      Quiosques					                                11,04 m² cada
16	     Baias para ônibus (embarque e desembarque)
144	    Assentos na área de espera


Áreas externas


1	      Estacionamento para carros			                 103 vagas
1	      Estacionamento para vans / especial		         12 vagas
1	      Estacionamento para motos			                  22 vagas	
							
                                                                                                                            47
1° PAVIMENTO:                                          2° PAVIMENTO:


Rodoviária:                                            Praça de alimentação / Mercado Municipal:
                                                       		
1	Bilheteria					175,00 m² 	 8	Restaurantes					37,50 m² cada
	(19 Guichês)					6,25 m² cada                         3	      Quiosques					                          11,04 m² cada	
3	Sanitários (1 Masc., 1 Fem. 1 Acess.)		   18,72 m²   3	Sanitários (1 Masc., 1 Fem. 1 Acess.)	    	   48,75 m²	
1	Posto da PM					9,38 m²                              52	     Boxes comerciais fechados			            14,89 m² cada
1	Posto do DNIT					9,38 m²                            18	     Boxes comerciais abertos			             14,67 m² cada
1	Posto do DER					9,38 m²                             1	Depósito					20,24 m²
1	Correios					9,38 m²                                 1	Administração					33,95 m²
1	Controle 					9,38 m²
1	Administração 					96,20 m²                          1	      Passarela de dimensões 10 x 245 m		     2.450 m²	
36	     Assentos na área de espera                     			


Terminal Urbano:


1	Controle					9,38 m²
1	Administração					52,00 m²	
						
								
	




                                                                                                                        48
6. TERMINAL RODOVIÁRIO, URBANO E MERCADO MUNICIPAL
                              plantas.cortes.perspectivas


                                                  SEQUÊNCIA DOS DESENHOS

                             TERMINAL RODOVIÁRIO E URBANO
                             - Implantação geral - nível 816,50 ao 819,50
                             - Planta nível 816,50 ao 819,50 (parte 1)
                             - Planta nível 816,50 ao 819,50 (parte 2)
                             - Ampliação 1 - nível 816,50 ao 819,50
                             - Ampliação 2 - nível 816,50 ao 819,50

                             TERMINAL RODOVIÁRIO E URBANO
                             - Implantação geral - nível 820,00 ao 823,00
                             - Planta nível 820,00 ao 823,00
                             - Ampliação 3 - nível 820,00 ao 823,00

                             PRAÇA DE ALIMENTAÇÃO E MERCADO MUNICIPAL
                             - Implantação geral - nível 823,50 ao 827,00
                             - Planta nível 823,50 ao 827,00 (praça)
                             - Planta nível 823,50 ao 827,00 (parte 1)
                             - Planta nível 823,50 ao 827,00 (parte 2)
                             - Ampliação 4 - nível 823,50 ao 827,00
                             - Ampliação 5 - nível 823,50 ao 827,00

                             PLANTA DE COBERTURA

                             CORTES
                             - Corte 1_1
                             - Corte 2_2
                             - Corte 3_3
                             - Corte 4_4
                             - Corte 5_5
                             - Corte 6_6

                             PERSPECTIVAS
                                                                            49
IMPLANTAÇÃO GERAL - NÍVEL 816,50 AO 819,50   50
Escala: 1 / 1500
1                                                 11                                                                      11                                                1
                                                                                                                                                           816,50
                                                                                                                                                                                                                                                                                                               818,00
                 814,80                                                                           2




                                      AMPLIAÇÃO 1                                                                                                                                                                           AMPLIAÇÃO 2                                                                       817,50

                                              3                                                   3                                                                                                                   3                                                            3
                                                                        1
                                                                                                                          11                                                                      11                                                1
                                                                                                                                                                                                                                                                                                    18


                                                                                          4                                                                                                                                                         5


                                                                                              8          9                11                        11                                                                       11                                                                     17
                                          6   6    6    6                                                                                                                                                                                                                       10
                 814,50                                                     7                                                                              816,50                                                                                       7

                                                                                                                                                                                           13
                                                                                          12                                                                                                                                                                   12
                                                                                                                                                                                                                                                                                                              816,50

                                     14                                                                          15




                                                                                                                                                           816,35
                                                                                                                                                                                                                                                                                                         16
                                16


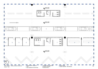
PLANTA NÍVEL 816,50 AO 819,50                 1 Sanitários (M/F e acessível)            4 Táxis - 10 vagas                     7 Sanitários (M/F e acessível)       10 Vestiário de Funcionários (M/F e aces.)   13 Balcão de informações                   16 Guarita                                        816,50
                                                                                                                                                                                                                                                                                                                  51
Escala 1 / 500                                2 Ônibus municipal: 16 baias              5 Embarque e desembarque               8 Achados e perdidos                 11 Área para quiosques                       14 Estacionamento - 103 vagas              17 Estacionamento especial - 12 vagas
                                              3 Espera terminal urbano - 144 assentos   6 Loja e depósito de encomendas        9 Guarda-volume                      12 Espera rodoviária - 308 assentos          15 Ônibus interurbano - 19 baias           18 Estacionamento motos - 22 vagas
22                                  23
                                                                                          21

                                                          816,50                                                                817,60
                 816,00
                                19   20




                                                                                                                                                 25




                                                                                                                                  24

                                                                                                                                   815,50        816,35




PLANTA NÍVEL 816,50 AO 819,50             19 Playground            22 Casa de máquinas            25 Estacionamento 103 vagas                             52
Escala 1 / 500                            20 Gramado               23 Pátio de carga e descarga
                                          21 Deque                 24 Pista de skate
816,50


                                                                                                 1
                                                                             1                                    1




                                                                                        816,35



                                                                                           4




   6             6           6         6                                 7                       7                    7                                         8   9




                                                                                        816,50




                                                                                                                                                      12



                                       1 Sanitários (M/F e acessível)            7 Sanitários (M/F e acessível)           9 Guarda-volume
AMPLIAÇÃO 1 - NÍVEL 816,50 AO 819,50
                                       4 Táxis                                   8 Achados e perdidos                     12 Espera rodoviária - 308 assentos
                                                                                                                                                                        53
Escala 1 / 500
                                       6 Loja e depósito de encomendas           9 Guarda-volume
816,50


                                                                   1
                                           1                                    1




                                                                                                                          816,35




                                                                                                                             5




                                                                                                                                 10   10   10


                                       7                           7                7




                                                                                                                          816,50




                                                                                                                 12




AMPLIAÇÃO 2 - NÍVEL 816,50 AO 819,50           1 Sanitários (M/F e acessível)       10 Vestiários (M/F e acessível)                             54
Escala 1 / 150                                 5 Embarque e desembarque             12 Espera rodoviária - 276 assentos
                                               7 Sanitários (M/F e acessível)
IMPLANTAÇÃO GERAL - PLANTA NÍVEL 820,00 AO 823,00   55
Escala 1 / 1500
AMPLIAÇÃO 3




                                  26                                                            27      28 29 30 31 32 33   36

                                                                                  820,00
                                                                                                                       34
                                                                                                                            37
                                                                                                                       35




PLANTA NÍVEL 820,00 AO 823,00   26 Bilheteria 19 postos           29 Posto DNIT                      32 Correios                 35 Controle rodoviária             56
Escala 1 / 500                  27 Sanitários (M/F e acessível)   30 Posto DER                       33 Copa                     36 Administração terminal urbano
                                28 Posto PM                       31 Controle terminal urbano        34 Almoxarifado             37 Administração rodoviária
27

                                                   27                   27    28              29             30   31         32         33
                                       26
                                                                                                                                                        36




                                                                                                    820,00

                                                                                                                                        34


                                                                                                                                                        37



                                                                                                                                        35




AMPLIAÇÃO 3 - NÍVEL 820,00 AO 823,00        26 Bilheteria - 19 postos              29 Posto DNIT                   32 Serviços gerais        35 Controle rodoviária             57
Escala 1 / 150                              27 Sanitários (M/F e acessível)        30 Posto DER                    33 Copa                   36 Administração terminal urbano
                                            28 Posto PM                            31 Controle terminal urbano     34 Almoxarifado           37 Administração rodoviária
AMPLIAÇÃO 5
IMPLANTAÇÃO GERAL - NÍVEL 823,50 AO 827,00                 58
Escala 1 / 1500
38

                                                             823,50




                                                       39




PLANTA PRAÇA - NÍVEL 823,50 AO 827,00   38 Praça                      59
Escala 1 / 500                          39 Passarela
39



                                                                                                                                                    44
                                                                                                                       41
                                                                                                                                                    44
                                                       40       40     40    40      40      40        40        40
                                                                                                                                                    44
                                                                                                                       42                  11
                                                                                                                                                    44
                                                                                                                                                    44
                                                                               43                                                           11
                                 823,50                                                                                                    823,50   44
                                                                                                                                                    44
                                                                                                                                                    44
                                                                                                                                                    44
                                                                                             11                          7               45 45
                                                                                                                                                    44
                                                                                                                                                    44
                                                                                                                                         45 45
                                                                                             11             43                                      44
                                                                                                                         7
                                                                                                                                         45 45      44
                                                                                                                         10
                                                                                                                                                    44
                                                                                             11
                                                                                                                                         45 45      44
                                                                                                                         10
                                                                                                                                         45 45      44
                                                                                             11                          10
                                                                                                                                                    44

                                                                                                                                                    44
                                                                                       AMPLIAÇÃO 4
                                                                                                                                                    44
                                                                                                                                         45 45
                                                                                                                                                    44
                                                                                                                        44                          44
                                                                                                                                         45 45
                                                                                                                        44                          44
                                                                                                                        44               45 45      44
                                                                                                                        44                          44
                                                                                                                                         45 45
                                                                                                                        44                          44

PLANTA NÍVEL 823,50 AO 827,00        7 Sanitários (M/F e acessível)         39 Passarela                              42 Depósito                   45 Box comercial tipo 2   60
Escala 1 / 500                       10 Vestiários (M/F e acessível)        40 Restaurante                            43 Praça de alimentação
                                     11 Área para quiosques                 41 Administração mercado municipal        44 Box comercial tipo 1
7
                                                                                                                           45 45     44
                                                                                                                                     44
                                                                                            11                             45 45
                                                                                                  43              10                 44

                                                                                                                           45 45     44
                                                                                            11
                                                                                                                                     44
                                                                                                                                     44
                                                                                                                                     44
                                                                                                                           45 45
                                       823,50                                                                                        44
                                                                                                                44         45 45     44
                                                                                                                44                   44
                                                                                                                44         45 45     44
                                                                                                                44                   44
                                                                                                                           45 45
                                                                                                                44                   44
                                     39                                                                         44                   44
                                                                                                                44                   44
                                                                                                                44                   44
                                                                                                                44                   44
                                                                                                                44                   44
                                                                                                                44                   44
                                                                                                                44                   44
                                                                                                                44                   44
                                                                                                                            11
                                                                                                                44                   44
                                                                                                                            823,50
                                                                                                                44                   44
                                                                                                                            11
                                                                                                                44                   44


                                                                                                                   46




PLANTA NÍVEL 823,50 AO 827,00   7 Sanitários (M/F e acessível)    39 Passarela                   45 Box comercial tipo 2                  61
Escala 1 / 500                  10 Vestiários (M/F e acessível)   43 Praça de alimentação        46 Monta-cargas
                                11 Área para quiosques            44 Box comercial tipo 1
45   45
                 11




                                                   43

                                                                                                                              45   45



                 11

                                                                                                        823,50


                                                                                                                              45   45



                                                                                         10




                 11                                                                                                           45   45



                                                                                         10




                                                                                         10
                                                                                                                              45   45
                 11




AMPLIAÇÃO 4 - NÍVEL 823,50 AO 827,00   7 Sanitários (M/F e acessível)    39 Passarela               45 Box comercial tipo 2             62
Escala 1 / 500                         10 Vestiários (M/F e acessível)   43 Praça de alimentação
                                       11 Área para quiosques            44 Box comercial fechado
39




                                                             823,50


                                                                           47




AMPLIAÇÃO 5 - NÍVEL 823,50 AO 827,00   39 Passarela                             63
Escala 1 / 150                         47 Acesso ao parque
PLANTA DE COBERTURA   64
Escala 1 / 1500
CORTE A_A
Escala 1 / 250




                 65
CORTE B_B
Escala 1 / 250




                 66
CORTE C_C
Escala 1 / 250




                 67
CORTE D_D
Escala 1 / 250




                 68
CORTE E_E
Escala 1 / 250




                 69
CORTE F_F
Escala 1 / 250




                 70
Fig. 73 - Perspectiva geral da nova Centralidade
Fig. 74 - Perspectiva a partir da Praça da estação
Fig. 75 - Perspectiva a partir da Rua Levino Ribeiro do Couto
Fig. 76 - Deque na Praça da Estação - nível 816,50
Fig. 77 - Perspectiva geral a partir do acesso à passarela
Fig. 78 - Cruzamento entre a Av. Antônio Mariosa
e a nova rua de acesso - nível 816,50
Fig. 79 - Passarela de acesso ao Parque Municipal - nível 823,50
Fig. 80 - Terminal de ônibus urbano de Pouso Alegre - nível 816,50
Fig. 81 - Terminal rodoviário - área de espera - nível 816,50
Fig. 82 - Terminal rodoviário - área de espera e escada rolante - nível 816,50
Fig. 83 - Bilheteria - nível 820,00
Fig. 84 - Praça de alimentação - nível 823,50
Fig. 85 - Mercado Municipal de Pouso Alegre - nível 823,50
Fig. 86 - Perspectiva geral interna
Fig. 87 - Mercado Municipal a Partir da Rua Levino Ribeiro do Couto
7. CONCLUSÃO



A ascenção de Pouso Alegre transformou a cidade em um grande pólo            O desafio do arquiteto está em materializar e solucionar as necessida-
que vem apresentando sucessivas melhoras em seus indicadores eco-            des levantadas durante o exercício projetual, de forma a agregar fun-
nômicos. O município tornou-se grande influência para toda a região do       cionalidade e conforto ao usuário. Por este motivo, foi importante a utili-
Sul de Minas e será dentro de alguns anos a cidade mais rica, populosa       zação de croquis e recursos gráficos computacionais, como a maquete
e atraente para investimentos.                                               eletrônica, que nos permite ter uma ideia mais abrangente daquilo fora
                                                                             projetado. O produto apresentado neste trabalho não deve ser encarado
Em contrapartida, vem-se notando uma defasagem na aplicação dos              como o resultado final do projeto de arquitetura, mas sim, como o impul-
recursos públicos em projetos sociais, se comparados aos privados e de       so para uma mobilização acerca de uma nova perspectiva de progresso
interesses econômicos. Prioriza-se a criação de distritos industriais, du-   urbano e social para Pouso Alegre.
plicação de avenidas, criação de acessos rodoviários e de loteamentos        		
de alto padrão. As soluções apresentadas para os problemas sociais e         								
ambientais ao longo deste tempo tornaram-se praticamente nulas.              	


Através deste trabalho foi possível repensar a forma de produzir uma
cidade para torna-la mais habitável e menos desigual. Os estudos reali-
zados ao longo deste tempo comprovaram o potêncial urbano de áreas
que atualmente encontram-se em más condições a apresentam-se em
situação de abandono, transformando-as em espaços públicos que co-
nectam e expandem os domínios do centro de Pouso Alegre, atualmente
defasado em relação a dimensão da cidade.


Repensar a infraestrutura no transporte público, a melhoria dos seus es-
paços, a ampliação e realocação de centros comerciais já consolidados,
como o Mercado Municipal, foram desafios que me levaram a observar
a região como um todo e a denominar este projeto como uma Nova Cen-
tralidade para Pouso Alegre.




                                                                                                                                                           86
8. BIBLIOGRAFIA



LIMA, José Roberto da Costa. Os terminais rodoviários de passageiros      CORRÊA, Roberto Lobato. Construindo o Conceito de Cidades Médias.
do interior do Estado de São Paulo: ontem e hoje / José Roberto da Cos-   In: SPOSITO, Maria Encarnação Beltrão. (org.). Cidades Médias: espa-
ta Lima. -- São Paulo, 2004.                                              ços em transição. São Paulo: Expressão Popular, 2007, p.23-33.


SUZUKI, Juliana Harumi - Artigas e Cascaldi, Arquitetura em Londrina.     HAZAN, Vera Magiano. As passarelas urbanas como novos vazios úteis
São Paulo, Ateliê editorial, 2003.                                        na paisagem contemporânea. Rio de Janeiro, 2007.


BRASIL, Departamento Nacional de Estradas de Rodagens, Divisão de         BORJA, Jordi; MUXÍ, Zaida. “Espacio Público. El espacio público: ciudad
Transportes de Passageiros. Terminais Rodoviários de Passageiros -        y cidadanía”. Ed. Eletcta, Barcelona, Espanha, 2003.
Anteprojetos Primários, elaborado de acordo com as Disposições Cons-
tantes do Manual de Implantação de Terminais Rodoviários de Passa-        LEFEBVRE, H. A revolução urbana. Belo Horizonte: Ed. UFMG, 2004.
geiros (MITERP). Rio de Janeiro, Serv.Publ. 1978.
                                                                          GOVERNO DO ESTADO DE SÃO PAULO - ARTESP - Manual de Aces-
POUSO ALEGRE, Prefeitura Municipal. Plano Diretor do Município de         sibilidade - Terminais Rodoviários. Sâo Paulo, 2009.
Pouso Alegre. Pouso Alegre, Serv. Publ. 2008.
                                                                          MILANI, Patrícia Helena; SILVA, Edima Aranha. Centralidade Urbana.
GRIMALDI, Renato Penteado Silva. Projeto do sistema de terminais ro-      Um estudo do centro principal de Tres Lagoas - MS. Geografia em Atos,
doviários de passageiros para Sâo Paulo. São Paulo, 1977.                 n. 9, v.1. UNESP, Presidente Prudente, 2009.


SILVA, Pedro Schünemann Christófaro. Rede de avaliação e capaci-          BARBOSA, André SIlva; ANDRADE, Alexandre Carvalho de; SANTOS,
tação para a implementação dos Planos Diretores Participativos. Belo      Isabel Cristina. Central, porém marginal: O bairro São Geraldo no con-
Horizonte, 2008.                                                          texto socioespacial da cidade de Pouso Alegre - MG. Pouso Alegre,
                                                                          2011.
ASSIS, Eduardo Moreira. A cidade e o “mal necessário”: Zona de Pros-
tituição, marginalidade social e disputa pelos espaços urbanos (Pouso     FARIA, Rivaldo Mauro de.Território urbano e o processo saúde-doença :
Alegre-MG, 1969 - 1988). São Paulo, 2005                                  perfil territorial da saúde no São Geraldo em Pouso Alegre - MG /
                                                                          Rivaldo Mauro de Faria. -- Campinas, SP : [s.n.], 2008.	
                                                                          				
				                                                                      								
								                                                                  	
                                                                                                                                                    87
Internet (janeiro a novembro de 2012)
                                                                        http://www.tvuai.com.br/pousoalegre/resumo/abertura.html
http://www.mackenzie.br/fileadmin/Graduacao/FAU/Publicacoes/PDF_
IIIForum_a/MI_FORUM_MARIA_AUGUSTA_3.pdf                                 http://www.pousoalegre.mg.gov.br


http://www.vitruvius.com.br/revistas/read/arquitextos/10.119/3371       http://www.vidroimpresso.com.br
                                                                        								
http://www.arcoweb.com.br/arquitetura/reis-arquitetura-terminal-rodo-   	
viario-15-07-2011.html


http://www.vitruvius.com.br/revistas/read/arquitextos/12.138/4113


http://www.mercadomunicipaldecuritiba.com.br/


http://www.constructalia.com/portugues_br/galeria_de_projetos/franca/
passarela_simone_de_beauvoir


http://www.vitruvius.com.br/revistas/read/arquitextos/10.114/11


http://www.fosterandpartners.com/projects/0953/default.aspx


http://www.arcoweb.com.br/especiais/balanco-deca-
da-2000-11-02-2011.html#transportes


http://www.arcoweb.com.br/arquitetura/nucleo-arquitetura-terminal-
de-07-04-2004.html


http://www.arcoweb.com.br/arquitetura/nucleo-arquitetura-terminal-
de-07-04-2004.html
				
								
	                                                                                                                                  88
Nova Centralidade Urbana em Pouso Alegre-MG

Nova Centralidade Urbana em Pouso Alegre-MG

  • 1.
    Nova centralidade urbana em Pouso Alegre - MG Igor Lombardi Fábio Mariz Gonçalves (orientador)
  • 2.
    Universidade de SãoPaulo Faculdade de Arquitetura e Urbanismo Nova centralidade urbana em Pouso Alegre - MG Trabalho Final de Graduação II Igor T. Lombardi Almeida Orientador: Fábio Mariz Gonçalves Dezembro de 2012
  • 3.
    AGRADECIMENTOS Agradeço em primeirolugar aos meus pais, Rosângela e Jardel, por todo seu esforço e contribuição para meu crescimento pessoal e acadêmico, aos meus amigos que me entusiasmaram nesta jornada do Trabalho Final de Graduação e, aos professores Fábio Mariz e Neyde Cabral, que com sua experiência me instrumentalizaram e motivaram para criar este projeto com liberdade e autonomia.
  • 4.
    ÍNDICE APRESENTAÇÃO 5 5 PROPOSTA 32 1 INTRODUÇÃO 6 5.1. Conceito geral 33 5.1.1. Plano de massas para o entorno 34 1.1. Pouso Alegre - Dados gerais 8 5.2. Terminal rodoviário, urbano e mercado municipal 43 1.2. Justificativa e objetivos 9 5.2.1. Partido arquitetônico 43 5.2.2. Programa de necessidades do edifício 46 2 HISTÓRIA 10 6 TERMINAL RODOVIÁRIO, URBANO E MERCADO 49 2.1. O começo de tudo 11 MUNICIPAL - plantas cortes e perspectivas 2.2. A cidade vitrine 12 2.3. A cidade capitalista e os bairros periféricos 13 7 CONCLUSÃO 86 3 PLANO DIRETOR 14 8 BIBLIOGRAFIA 87 3.1. Análise geral 15 4 ÁREA DE INTERVENÇÃO 20 4.1. Análise da área de intervenção 21 4.1.1. Região cenral 22 4.1.2. Mercado municipal 23 4.1.3. Avenida duque de caxias 25 4.1.4. Terminal rodoviário 26
  • 5.
    APRESENTAÇÃO Por ter vividomuito tempo na região do Sul de Minas, particularmente Primeiramente, foi feito um levantamento sobre a situação atual do cen- em Pouso Alegre, escolhi essa cidade para desenvolver meu Trabalho tro, em especial do Terminal Rodoviário e toda sua relação com o entor- Final de Graduação. Sempre observei seu contexto urbano e imaginei no. A partir daí, fui capaz de traçar diretrizes para um plano de massas e propostas para melhorá-lo. Com este trabalho, tenho uma oportunidade construir um edifício que proporcionasse novas conexões em um tecido de realizar uma um projeto concreto e uma análise mais abrangente de urbano que atualmente encontra-se fragmentado. tudo que fora observado como arquiteto e urbanista durante minha tra- getória acadêmica. O objetivo é ordenar e expandir uma região em ascenção que, como na maioria das cidades brasileiras, sofre com o crescimento desordenado, Pouso Alegre gradativamente vem tomando uma posição econômica im- o qual desencadeia uma série de conflitos causados pela falta de plane- portante no estado de Minas Gerais, sendo um dos municípios que mais jamento e pela quase inexistência de políticas sociais. cresce nas últimas décadas e onde mais se instalaram indústrias, esta- belecimentos comerciais e instituicionais de grande porte, devido à sua boa localização, e à importantes obras de infraestrutura para comportar essa demanda. Consequentemente, muitas pessoas são atraídas em busca de emprego e novas oportunidades. Apesar dos esforços a respeito de infraestrutura, como criação de Par- ques industriais, duplicação e criação de novas avenidas, etc., a área central de Pouso Alegre continua estagnada, com ruas cada vez mais congestionadas e espaços públicos cada vez piores. Uma das premissas deste trabalho foi a melhoria, requalificação e cria- ção de instalações para o sistema de transporte público que fossem capazes de ampliar e atender a um alto padrão de qualidade de suas funções, além de atuar como um novo referencial para a cidade. 5
  • 6.
  • 7.
    Problemas como desigualdade,degradação dos espaços públicos e pri- Correa (2007) estabelece uma classificação para as cidades de pequeno vados, gentrificação, violência, etc., não atingem somente os grandes e de médio porte. Pouso Alegre se encaixa no grupo das cidades mé- centros urbanos, mas também as cidades que mais se desenvolvem no dias. Essas cidades são subdivididas em três subgrupos: no primeiro, país: as cidades médias. Em constante ascensão, elas atraem grande o lugar central é responsável pela oferta de bens e serviços para uma número de pessoas em busca de emprego e qualidade de vida. Porém, hinterlândia regional; o segundo consiste em um centro de drenagem na maioria das vezes, não estão preparadas para absorver o aumento e consumo da renda fundiária, que serve de suporte para atividades do contingente populacional. agropastoris e, por fim, os centros de atividades especializadas, onde se desenvolvem nichos de atividades específicas. Um dos fatores que favorece o crescimento de Pouso Alegre é a sua localização estratégica, muito próxima aos grandes centros nacionais Podemos considerar que Pouso Alegre faz parte do primeiro grupo, pois, e regionais, o que facilita a transação econômica e de pessoas entre a como dito anteriormente, é uma grande área de influência para os mu- cidade e esses pólos. nicípios vizinhos. Em contraposição, Pouso Alegre também se identifica com o segundo, pois possui intensa atividade industrial, a qual geral- O município de Pouso Alegre está localizado no Sul do Estado de Mi- mente possui vínculos externos, com produção voltada para o mercado nas Gerais, compreendido na latitude 22º 14’ 02” e longitude 45º 55’ e nacional e internacional. 59”. Está relativamente próximo das principais regiões metropolitanas do país, através da rodovia BR 381 (Fernão Dias), que faz a ligação com as A criação de um novo edifício que abranja não somente o âmbito eco- cidades de São Paulo (200 km) e Belo Horizonte (384 km), e a rodovia nômico, mas também as questões urbanas e sociais, é pauta de um BR 459, por onde há o escoamento em direção as cidades de Poços de processo de desenvolvimento voltado prioritariamente para servir de su- Caldas (100 km) e Rio de Janeiro(360 km). O município é cortado ainda porte ao bem-estar social. pela rodovia MG 290, importante via de escoamento para a cidade de Campinas-SP. (FARIA, 2008). Neste trabalho, serão abordados tais aspectos econômicos e sociais, e também quais os fatores que nortearam o partido arquitetônico da nova centralidade. A partir desta análise, será criado um plano de massas para a reestruturação do centro, finalizando no estudo preliminar do pro- jeto de arquitetura do edifício proposto. 7
  • 8.
    1.1. Pouso Alegre- Dados Gerais1 Mesorregião Sul/Sudoeste de Minas Microrregião Pouso Alegre Fundação 19 de outubro de 1848 (163 anos) Gentílico pouso-alegrense Área 543,883 km² População 132.445 hab. Estimativa IBGE/2011 Densidade 240,51 hab./km² IDH 0,826 elevado PNUD/2000 PIB R$ 2.563.771 mil IBGE/2008 Pouso Alegre PIB per capita R$ 20.033,53 (2009) Altitude 832 m Clima Tropical de Altitude Temperatura média 17,8°C 1 Dados obtidos do site www.ibge.gov.br/cidadesat e www.wikipedia.com.br/Pouso Alegre (06/2012) 8
  • 9.
    1.2. Justificativa eObjetivos A ideia de criar um edifício que agregasse um Terminal de ônibus Inter- Outro fator relevante para a criação de um projeto referência para a Pou- municipal e Urbano e um Mercado Municipal para a cidade de Pouso so Alegre, é que a cidade se tornou alvo de grandes investimentos que Alegre, na mesma área onde se situa a atual rodoviária, fez com que, se intensificaram nesses útilmos anos. Em um jornal regional atualmente através de uma análise da estruturação urbana e dos principais eixos e foi publicado: entroncamentos da área central, fosse evidenciado o grande potencial do amplo terreno, que está localizado nos limites da Av. Antonio Mario- Dados da Secretaria de Desenvolvimento Econômico projetam um cres- sa, principal acesso do centro à Rodovia Fernão Dias (BR 381). cimento do Produto Interno Bruto que deve fazer dobrar as riquezas da cidade até o final de 2013. De acordo com a projeção, o PIB de Pouso Ao lado oposto desta avenida encontra-se um dos bairros mais carentes Alegre, que é a soma de todas as riquezas produzidas pelo município em do município, o São Geraldo, que conta com uma população de 35 mil um único ano, chegará a R$ 5,7 bilhões, no final de 2013. O valor repre- habitantes, ou seja, mais de 1/4 de toda a população urbana. senta mais que o dobro da última marcação feita pelo Instituto Brasileiro de Geografia e Estatísticas, o IBGE. Em 2009, o órgão estimou o PIB da O Rio Mandú é o principal rio da cidade e delimita o perímetro do bairro, cidade em R$ 2,563 bilhões.” (P.A Notícias. Pouso Alegre. 25 de Maio porém, a expansão demográfica e o aumento das invasões nas áreas de de 2012). proteção ambiental por ocupações irregulares, ameaçam a integridade da mata ciliar e intensificam os problemas socio-ambientais. Com isso, é evidente que a cidade necessita melhorar sua infraestrutura e mostrar-se capaz de gerir esse crescimento, ampliando e criando no- Dentro do zoneamento de Pouso Alegre, o bairro São Geraldo, mais co- vas instalações para transporte público, expandindo a região central em nhecido como “Aterrado” , encontra-se em uma ZEIS, que corresponde 1 todos os seus aspectos, principalmente seus espaços sociais e construir a “áreas ocupadas por população pertencente aos estratos de menor um futuro promissor, resultante desta ascenção econômica, a qual trará renda, as quais deverão ser objeto de programas de regularização urba- mais qualidade de vida a seus moradores, que são os principais agentes nística e fundiária e/ou reassentamento, quando for o caso”, conforme o colaboradores do desenvolvimento. Plano Diretor do Município (2008, p. 08). 1 O São Geraldo é conhecido popularmente por “Aterrado”, e geralmente recebe associações entre as suas precárias condições estruturais e de seus habitantes (a maioria de baixa renda),com a violência e os malefícios que atingem o restante da cidade. Isto inclusive ocorreu com políticos locais, a exemplo do presidente da câmara dos vereadores Moacir Franco, que o descreveu como um “câncer no coração da cidade” (Folha de Pouso Alegre, 2011). 9
  • 10.
  • 11.
    2.1. O começode tudo A história de Pouso Alegre tem início no despertar econômico da região do Sul de Minas. No final do século XVI, já sabia-se da existência de pedras preciosas na região do Rio Verde e Alto do Sapucaí. As primeiras ocupações na cidade iniciam-se no século XVIII por João Silva. De acordo com o Almanaque Sul-Mineiro (1984): “Segundo tra- dição que se tem conservado, quem primeiro habitou às margens do Mandu foi o aventureiro de nome João da Silva”. Este homem prosperou com sua lavoura e doou uma parte de sua ter- ra para a construção de uma igreja dedicada ao Senhor Bom Jesus, e foi com a ajuda de voluntários que conseguiu finalizá-la em 1795, ano em que foi realizada a primeira missa pelo Padre Francisco Andrade de Fig. 1 - Mercado Municipal em 1893 Melo. Fig. 2 - Pouso Alegre 1855. Av. do Imperador, atual Av. Dr. Lisboa. Por volta de 1810 o povoado foi emancipado à categoria de Freguesia, e no dia 6 de Novembro do mesmo ano foi criado por “Alvará Regió”1 o Distrito de Pouso Alegre, e o Município foi desmembrado do Município de Campanha por Decreto em 13 de Outubro de 1831. A sede municipal recebeu foros de cidade no dia 19 de outubro de 1848. A Lei estadual n° 2 do dia 14 de setembro de 1891 confirmou a criação do distrito-sede do Município de Pouso Alegre, o qual era composto por 4 distritos: o distrito-sede, Congonhal, Borda da Mata e N. Srª. da Con- ceição da Estiva (atualemente Estiva). Somente em 12 de dezembro de 1953 todos os distritos foram desmembrados, havendo atualmente apenas um: a sede. 1 O Alvará Régio é um termo jurídico antigo usado para designar um edito real. 11
  • 12.
    2.2. A cidadevitrine Nas as décadas de 60 e 70, devido às primeiras indústrias e instalação de diversos empreendimentos de porte, Pouso Alegre muda seu perfil e passa a se afirmar como um centro de referência no Sul de Minas, uma cidade próspera que atraía investimentos e se tornava cada vez requisitada. Tais modificações serviram para a construção de um discurso que enfa- tizava para a população de Pouso Alegre a imagem da “cidade vitrine” e de um lugar cuja prosperidade estava expressa nas ruas, através das novas construções e dos limites que se expandiam, prevalecendo uma referência harmoniosa e homogeneizadora em detrimento da multiplici- dade da cidade, heterogênea, plural (MATOS, 2002, apud Assis, 2005). Fig. 3 - Nova catedral em construção, 1961 Fig. 4 - Estátua de Fernão Dias Muitas obras foram feitas, como a Catedral Metropolitana (1961), a Fa- Fig. 5 - Faculdade de Direito do Sul de Minas, 1962 culdade de Direito do Sul de Minas (1962) e o primeiro Terminal Rodovi- ário (1969). Este, considerado um edifício de suma importância, pois era visto como expressão de mudança e exemplo de um novo tempo para Pouso Alegre, recaindo sobre ele a função de refletir todo o progresso que o município desfrutaria a partir de seu “surto de desenvolvimento” (GOUVÊA, 1998, apud Assis, 2005), para o que a localização geográfica foi amplamente apontada pelos jornais como a responsável por fazer da cidade “o maior centro rodoviário do sul de Minas, com um movimento de mais de 130 horários de ônibus diários”. (Jornal o Linguarudo. Pouso Alegre, 03 dez. 1969) Nessa época havia inúmeros prostíbulos na cidade. Estes se concentra- vam nas áreas centrais, próximos à rodoviária. Com a inaguração desta, em 19 de Outubro de 1969, não era mais tolerável a existência de algo tão degradante. Sendo assim, proíbiu-se o funcionamento de todos eles, evitando que também se tornassem cartão postal de Pouso Alegre. 12
  • 13.
    2.3. A produçãocapitalista e os bairros periféricos A população de Pouso Alegre, em 40 anos apresentou considerável à morfologia da cidade, que se resulta de um sistema hierárquico, no crescimento, passando de 34.485, em 1970, para 130.586, no ano de qual existem diversos contextos urbanos e disparidades sociais muito 2010 (IBGE). O panorama vivido durante essas décadas é o fator deter- fortes, excluindo as classes menos favorecidas, que sem quaisquer al- minante que direcionou a cidade a consolidar a sua importância. ternativas, se aglomeraram em espaços mais vulneráveis à ações antró- picas que resultam em desastres naturais. “Neste período, foram significativas as transformações econômicas e so- cioespaciais que incidiram na área urbana municipal, em especial no se- tor sul, que recebeu importantes e diversificados investimentos públicos e privados. Este processo fez com que o bairro São Geraldo, que ante- riormente era considerado como periférico, passasse a integrar a área central da cidade. Apesar disto, seu processo de adensamento ocorreu notoriamente sem planejamento, na várzea do rio Mandú, o que implica em freqüentes alagamentos. (BARBOSA; ANDRADE; SANTOS, 2011). Mais uma vez, o bairro São Geraldo serve como exemplo da resultan- te de interesses políticos e econômicos que nortearam o processo de urbanização da cidade. A grande quantidade de mão-de-obra barata e a proximidade com os grandes centros urbanos proporcionaram o de- senvolvimento de indústrias e consequentemente novas áreas, as quais foram se consolidando - em especial este bairro - de forma precária e desordenada. O êxodo rural das últimas décadas também é um fator relevante para a compreensão do desenvolvimento do bairro. Segundo o IBGE (2007), a taxa de urbanização da cidade era maior que a do estado de Minas Gerais. Enquanto este apresentava de 82% da população residindo na área urbana, Pouso Alegre obtinha 91%. A maioria desta população teve o setor de serviços e a indústria como Fig. 6 - Em 2011, o bairro São Geraldo foi a principal vítima das chuvas, devido à sua loca- forma de trabalho. Este aspecto econômico está intrinsecamente ligado lização em uma área de várzea e à ausência de um sistema de captação de águas pluviais. 13
  • 14.
  • 15.
    3.1. Análise Geral OPlano Diretor de Pouso Alegre foi elaborado em 2008 pela Prefeitura Zona Mista 2 (ZM 2) - corresponde às áreas de média densidade, com Municipal e é responsável pelo zoneamento do município e por identi- ocupação caracterizada por usos múltiplos como residências uni e multi- ficar áreas com características peculiares, traçando diretrizes para as familiares, comércio, serviços e uso institucional, sendo possível a insta- mesmas. lação de usos multifamiliares, institucionais, comerciais e de serviços de atendimento local, onde devem ser aplicados parâmetros de ocupação Para Silva [ca. 2009], mesmo que o Plano Diretor apresente algumas que impeçam o processo de adensamento para garantir as condições de estratégias para o desenvolvimento econômico e obtenha diretrizes ge- conforto ambiental e qualidade de vida existentes, com impedimento de rais e específicas para a promoção do desenvolvimento social de Pouso fracionamento de lotes; Alegre, seu foco é ordenar o território do município e qualificar a admi- nistração para coordenar o processo de implantação e gestão do Plano. Zona Especial de Interesse Social (ZEIS) - corresponde às áreas ocupa- das por população pertencente aos estratos de menor renda nas quais O área urbana é composta pelas seguintes macrozonas: há interesse público em ordenar a ocupação, por meio de regularização urbanística e fundiária ou reassentamento, assim como aquelas onde o “Zona Mista Central (ZMC) - corresponde às áreas do centro tradicio- Poder Público tem interesse em implantar novos empreendimentos habi- nal da cidade, onde se situam o comércio e as atividades de prestação tacionais de interesse social, segundo parâmetros específicos definidos de serviços de atendimento geral, com ocupação caracterizada por usos pela Lei de Uso e Ocupação do Solo e programas de regularização, sen- múltiplos como residências uni e multifamiliares, comércio, serviços e uso do: institucional, sendo possível a instalação de usos multifamiliares, insti- ZEIS 1 - áreas ocupadas por população pertencente aos estratos de me- tucionais, comerciais e de serviços de atendimento local e geral, com nor renda, as quais deverão ser objeto de programas de regularização medidas de contenção do processo de verticalização; urbanística e fundiária e/ou reassentamento, quando for o caso; ZEIS 2 - áreas destinadas ao reassentamento de população em área de Zona Mista 1 (ZM 1) - corresponde às áreas urbanas em que predomina risco ou em áreas de proteção ambiental; a ocupação residencial unifamiliar de baixa densidade, sendo permiti- ZEIS 3 - áreas destinadas a novos empreendimentos habitacionais de dos usos residenciais unifamiliares e usos institucionais e econômicos interesse social. de atendimento local, onde devem ser aplicados parâmetros de uso e ocupação que permitam manter as condições de conforto ambiental e Zona Mista de Verticalização (ZMV) - corresponde às áreas mistas de qualidade de vida existentes; alta densidade, onde serão permitidos processos de verticalização e usos multifamiliares, institucionais, comerciais e de serviços de atendimento local e geral (...). 15
  • 16.
    Zona de Empreendimentosde Porte (ZEP) - corresponde às áreas ocu- padas pelo Distrito Industrial, por grandes indústrias, por equipamentos de grande porte e aquelas onde serão permitidos usos econômicos e empreendimentos de maior porte conflitantes com o uso residencial, cuja instalação e funcionamento deverão ser precedidos de licenciamento am- biental fundamentado em estudos de impacto ambiental e urbanístico, conduzidopelo setor competente da Prefeitura Municipal; Zona de Expansão Urbana (ZEU) - corresponde às áreas ainda vazias dentro do perímetro urbano e propícias à ocupação, pelas condições do sítio natural e possibilidade de instalação de infra-estrutura, respeitando- se as Áreas de Preservação Permanente (APP) previstas na legislação ambiental e aquelas com declividade acima de 30%, com a classificação preliminar ZM 2;” (Plano Diretor. Pouso Alegre. 30 de Junho de 2008) Nas Áreas áreas de Interesse Especial (AIE), as diretrizes prevalecem sobre às do Macrozoneamento. São elas: “I. Áreas de Interesse Urbanístico (AIU) - correspondem às áreas destina- das a intervenções específicas, visando a melhoria da estruturação urba- na municipal, possibilitando uma requalificação e revitalização do centro urbano e de outras centralidades identificadas pelo planejamento local, compreendendo três categorias (...). II. Áreas de Interesse Urbanístico-Ambiental (AIUA) - correspondem às áreas ocupadas ou em processo de ocupação que apresentam potenci- LEGENDA - MACROZONEAMENTO ais riscos ambientais (...). (Plano Diretor. Pouso Alegre. 30 de Junho de 2008) Fig. 7 - Plano Diretor 2008 16
  • 17.
    III. Áreas deInteresse Cultural (AIC) - correspondem às áreas compro- metidas com a preservação da cultura e história do Município e de seus habitantes, exigindo a adoção de medidas e parâmetros destinados à sua preservação, destacando-se a AIC Centro, correspondente ao núcleo do centro tradicional da cidade”. (Plano Diretor. Pouso Alegre. 30 de Junho de 2008). O terreno escolhido para o projeto localiza-se nos limites na Zona de Empreendimento de Porte, Zona Mista Central (Fig.8) e Zona Mista 2. Na ZEP, a classificação da macrozona identifica apenas construções já existentes, que correspondem a atual rodoviária, o 14° GAC (Grupo de Artilharia de Campanha) e suas adjacências. Visto que nas ZEPs é per- mitido a construção de grandes empreendimentos, como indústrias, por exemplo, torna-se conflitante esta classificação com o restante do entor- no. Tais edificações, se construídas nesta área, ocasionariam uma seg- regação ainda maior no tecido urbano entre os dois lados do rio Mandú. Outro fator conflitante é a localização da ZM 2 nas margens do mesmo Fig. 8 - Plano Diretor na área de intervenção rio. Por ser uma área de várzea, esta deveria ser classificada como uma Zona de Proteção Ambiental (ZPA), de forma a preservar a mata ciliar e minimizar os impactos ambientais. Nota-se portanto, que o Plano Diretor tem uma leitura e um posiciona- mento deficiente em diversos aspectos. As macrozonas são classifica- das apenas pelas condições atuais de organização urbana, aquém de uma reestruturação de áreas que se econtram mais fragilizadas. 17
  • 18.
    Fig. 9 -Zona Mista de Verticalização (ZMV) - Centro de Pouso Alegre Fig. 10 - Zona de Empreendimentos de Porte (ZEP)- Rodoviária Municipal Fig. 11 - Zona Mista 2 (ZM 2) - Bairro Fáti- ma I Fig. 12 - Zona Especial de Interesse So- cial III (ZEIS 3) - Bairro Bandeirantes II Fig. 9 Fig. 10 Fig. 11 Fig. 12 18
  • 19.
    Fig. 13 -Zona Especial de Interesse So- cial 1 (ZEIS 1) - Bairro São Geraldo Fig. 14 - Zona de Proteção Ambiental 5 (ZPA 5) - Rio Mandú Fig. 15 - Área de Interesse Urbanístico e Ambiental 3 (AIUA 3) - Aeroporto Fig. 16 - Zona Mista 2 (ZM 2) Galeria PA Shopping. Fig. 13 Fig. 14 Fig. 15 Fig. 16 19
  • 20.
    4. ÁREA DEINTERVENÇÃO
  • 21.
    4.1. Análise daárea de intervenção 4.1.1. Região Central - Maior parte das calçadas encontram-se precárias e sem acessibilidade; - Ruas muito estreitas; O centro de Pouso Alegre é a área mais tradicional e a mais densamente - Comércio ambulante ocupando calçadas; habitada. Apresenta uma alta concentração de estabelecimentos comer- - Frequentes congestionamentos. ciais e de prestação de serviços por toda sua extensão. A Av. Doutor Lisboa é o setor comercial mais importante da cidade, junto à Rua Comendador José Garcia, além de também possuir grande parte dos edifícios históricos tombados pelo Patrimônio Cultural. Suas qua- dras são classificadas pelo Plano Diretor como Áreas de Interesse Cul- tural (AIC) - que “correspondem às áreas comprometidas com a preser- vação da cultura e história do Município e de seus habitantes, exigindo a adoção de medidas e parâmetros destinados à sua preservação (...)”. (Plano Diretor. Pouso Alegre. 30 de Junho de 2008) Pelo fato de o centro ser a região mais antiga da cidade e ter se desen- Fig. 17 - Teatro Municipal na Av. Dr. Lisboa. Inaugu- Fig. 18 - Antigo Fórum Municipal localizado no cen- rado em 1875, foi tombado pelo Patrimônio Cultural tro da cidade volvido sem um projeto urbanístico, a maior parte de suas ruas são es- treitas e de difícil locomoção de veículos, o que gera transtornos quanto à disponibilidade de estacionamentos e locomoção dos transeuntes. A partir de frequentes visitas em campo, foram classificados os princi- pais problemas da área: - Ausência de infraestrutura para atender o Sistema de Transporte Pú- blico Municipal; - Vazios urbanos em áreas com grande potencial urbanístico; - Desarticulação entre a área central e suas proximidades; - Espaços públicos de lazer quase inexistentes; Fig. 18 - Conservatório Municipal Fig. 19 - Rua Comendador José Garcia 21
  • 23.
    Além das ruascomerciais já mencionadas, existem três grandes con- 4.1.2 Mercado Municipal glomerados de comércio popular da cidade - arredores do Terminal Rodoviário, Mercado Municipal e Avenida Duque de Caxias. Esses es- O edifício sofreu inúmeras reformas ao longo do tempo que o descarac- paços, há décadas “eram cedidos para comerciantes sem que fossem terizou. Localiza-se próximo a Catedral Municipal e ocupa 100% uma respeitados critérios legais”(Prefeitura Municipal. Pouso Alegre. 2012). quadra de aproximadamente 1600m². Não existe área adequada para Apenas neste ano, foi realizada a legalização dessas permissões, at- carga e descarga de mercadorias, o que gera freqüentes congestiona- ravés de uma série de licitações para a liberação de outorgas de per- mentos no local. missão para atuação nesses setores. O “Mercadão”, como é conhecido, deixou de ser apenas um lugar para as compras de hortifrutigranjeiros e se tornou um ambiente famoso de- Fig. 20 - Mapa dos 3 conglomerados de comércio popular vido ao delicioso pastel de farinha de milho, que é o atrativo principal da culinária local. Além do comércio de alimentos, também são encontra- das lojas de roupas, calçados e artigos em geral. O primeiro Mercado da cidade localizava-se no mesmo terreno do atual. Inaugurado em 1895, consistia em uma cobertura sobre um espaço de livre transição entre seu interior e exterior. Em ambos espaços, ocorria a venda de mercadorias, como pode ser observado na figura 20. As adap- tações no edifício ao longo do tempo tornaram-o mais fechado e sem integração com seu entorno. 1 - Mercado Municipal 2 - Av. Duque de Caxias 3 - Terminal Rodoviário 23
  • 24.
    Fig. 21 -Mercado em 1895 Fig. 22 - Mercado na década de 1990 Fig. 23 - Mercado em 1935 Fig. 24 - Mercado atualmente 24
  • 25.
    4.1.3. Avenida Duquede Caxias A Avenida Duque de Caxias é o local onde se localiza o principal ponto de partida e chegada dos ônibus municipais de Pouso Alegre. Milhares de pessoas circulam diariamente na área e esta também se consolidou como uma importante região do comércio popular da cidade. Nos canteiros centrais da avenida existem quiosques de comércio varia- do. Diversas lanchonetes e lojas no piso térreo de sobrados e edifícios- também compõem o cenário local. O sistema de transporte municipal é feito pela Viação Princesa do Sul. Os ônibus atendem tanto as áreas centrais, quanto os bairros mais dis- tantes e a zona rural. Dezenas de ônibus estacionam na sarjeta para Fig. 25 / 26 - Vista do interior do Mercado Municipal embarque e desembarque de passageiros. O terminal improvisado de- limita-se com residências, comércio, praça, etc. Não existe nenhuma proteção, segurança e acessibilidade para as pessoas que aguardam o embarque, trazendo transtorno para todos que transitam e intensificando o tráfego de veículos. Além da região central, a rodoviária é outro local importante de parada dos ônibus municipais, porém, também não apre- senta infraestrutura adequada a esta finalidade. Fig. 27 - Av. Duque de Caxias - pessoas aguardam a chegada dos ônibus 25
  • 26.
    4.1.4. Terminal Rodoviário Inaugurado em 1991, foi o segundo Terminal Rodoviário a ser constru- ído em Pouso Alegre. Está localizado na área central entre a Avenida Levino Ribeiro do Couto e a Avenida Antônio Mariosa. Segundo o site da Prefeitura (2011), conta com 447 horários de partidas e circulam diaria- mente pelo terminal aproximadamente 7.500 pessoas, sendo que 2.300 embarcam para outros destinos. Atualmente, 12 empresas de transporte coletivo operam no terminal: Gardênia, Cambuí, Bragança, Santa Terezinha, Santa Cruz, Mantiquei- ra, Pássaro Marron, Frota Nobre, 1001, Gontijo, Bel-Tour e Cometa. Há serviço 24 horas de lanchonetes, guarda-volumes, táxi, sanitários e far- Fig. 28 - Av. Duque de Caxias - ponto de ônibus mácia.1 O edifício do Terminal Rodoviário é composto por um pavimento térreo e ocupa uma área de 4.700 m². De acordo com o MITERP (1976)2, pode- ria ser classificado como um terminal de classe C, devido aos seguintes parâmetros: CLASSE Número mé- N ú m e r o Número de Número de N ú m e r o dio de parti- máximo de Platafor- Plataformas m á x i m o das diárias partidas si- mas de em- de desem- possível multâneas barque barque de partidas diárias C 251 a 500 13 a 25 15 a 30 5 a 10 1004 a 2000 1 Informações retiradas do site http://www.pousoalegre.mg.gov.br/rodoviaria (Outubro 2011) 2 O MITERP - Manual de Implantação de Terminal Rodoviário de Passageiros - foi elaborado em 1976 com o objetivo de sistematizar uma metodologia para a implantação e elaboração de projetos de Terminais Rodoviários, classificando os terminais em diversas categorias. Apesar de alguma defasagem, ainda é utilizado para a construção de grandes Fig. 29 - Igreja Sagrado Coração de Maria Fig. 30 - Tráfego nas proximidades do Mercado rodoviárias no país. 26
  • 27.
    Fig. 31 -Plataformas de embarque do Terminal Rodoviário Fig. 32 - Instalações precárias e pouca iluminação no inteiro da rodoviária Fig. 33 - Bilheterias Fig. 34 / 35 - A falta de manutenção acarretou perda de parte do forro em alguns locais Fig. 36 - Improvisos no piso na área de despacho de mercadorias. 27
  • 28.
    O Terminal possui15 plataformas de embarque e desembarque e apre- Durante o dia, os venderores ambulantes instalam suas barracas próxi- senta um pico de partidas nos dias de sexta-feira e em vésperas de mas ao acesso do Terminal, na Avenida Levino Ribeiro do Couto, pois é feriado. intenso o fluxo de pedestres nesta área. À noite, a região torna-se vazia, com execessão de alguns traillers de lanches que funcionam nas proxi- Apesar de ter sido construído há apenas 21 anos, seu estado de conser- midades. Neste período, a área se torna perigosa, pois a prostituição e vação é precário, com o forro deteriorado em alguns locais, iluminação o tráfico de drogas se afirmaram nos arredores. deficiente, etc. Além disso, possui uma fiscalização ineficaz, acarretanto um alto número de pedintes e vendedores ambulantes. Dessa forma, conclui-se que a grande disponibilidade de espaços va- zios gera uma subutilização de todo o complexo. Além de gerar este O entorno é composto por amplos espaços vazios, que são utilizados conflito, o vazio urbano resulta na falta de integração com o restante da esporadicamente para diversos eventos. A feira popular mais famosa região central e de outros bairros da cidade, principalmente o Bairro São da cidade ocorre aos domingos, no pátio do terminal. Além desta feira, Geraldo. O entorno do Terminal Rodoviário funciona atualmente como realiza-se no local a Feira das Nações, evento com comidas típicas de uma fronteira, porém, é uma área que apresenta um forte potencial para vários países, shows musicais, sorteios de brindes e bingos, anualmente a cidade, capaz de requalificar seu tecido e seus respectivos espaços no mês de Agosto. públicos. Ao lado do pátio da rodoviária, existe um terreno baldio da Prefeitura do Município, a qual o aluga para parques de diversões itinerantes, circos e eventos em geral. Porém, na maior parte do tempo, este terreno en- contra-se vazio e inacessível aos pedestres, pois é cercado por muros. A praça existente em frente ao terminal também é muito pouco frequen- tada. Em contrapartida, é o único espaço da cidade que possui pista para esportes radicais, o que faz com que seja utilizada apenas para estes fins. 28
  • 29.
    Fig. 37 -Imagem de satélite mostra a feira de domingo nas ruas perimetrais do Terminal Rodoviário Fig. 38 - Pátio da rodoviária torna-se vazio na ausência de eventos. Fig. 39 - Feira das Nações em 2011 Fig. 40 - Parque de diversões no terreno da Prefeitura 29
  • 30.
    Av. Duque deCaxias Mercado Municipal Catedal Rodoviária Pátio da Rodoviária Terreno da Prefeitura Bairro São Geraldo 30
  • 31.
    Comércio e serviço Uso misto Uso residencial Institucional Áreas verdes Indústrias Fig. 41 - mapa de uso e ocupação do solo na área de intervenção 31
  • 32.
  • 33.
    5.1. Conceito geral Oprojeto parte das premissas de reestruturação de uma área subutiliza- O terreno que anteriormente apresentava uma área de aproximadamen- da para a criação de uma nova centralidade em Pouso Alegre. A partir te 33.260 m², passa a possuir 45.350 m². Com uma significativa área dis- de um plano de massas que dará suporte a um futuro projeto de maior ponível, tornou-se viável a reconstrução do Mercado Municipal e do Ter- escala, optou-se como ponto de partida o Terminal Rodoviário, Urbano minal Urbano junto à rodoviária. Além disso, também foram propostos: e Mercado Municipal. - Criação de um Parque entre os bairros São Geraldo e a área central, O terreno baldio da Prefeitura foi agregado a área (Fig. 43). O objetivo preservando as margens do Rio Mandu e criando novos espaços de foi aumentar os espaços públicos que realmente pudessem ser usufru- lazer; ídos e ampliar a capacidade construtiva do local. Também foi proposta - Desapropriação das áreas ocupadas irregularmente nas margens do a abertura de uma nova rua que dará continuidade à Rua Pedro Adão, rio; classificada pelo Plano Diretor como uma via coletora. - Criação de um eixo de pedestre (calçadão e passarela) interligando o Parque ao centro; - Continuação da malha urbana e relocação da população em um terre- no vazio localizado na Av. Antônio Mariosa. Fig. 43 - Mapa do terreno proposto Área agregada Terreno do projeto Proposta para nova rua Rodovia Interestadual Vias arteriais Vias coletoras Fig. 42 - Mapa do sistema viário Dique II 33
  • 34.
    5.1.1 - Planode Massas para o entorno O edifício do atual Mercado será demolido e substituído por uma praça que conectará os espaços livres da área central. Além disso, a ampliação A requlificação do centro de Pouso Alegre foi pensada como um projeto e reformulação dos canteiros da Av. Duque de Caxias proporcionarão a que poderá ser feito em etapas e que aos poucos desenvolverá novas criação de um comércio ao longo deste espaço, como, por exemplo, relações intra-urbanas em todo o entorno. O principal elemento pensado ocorre nas ramblas1 de Barcelona. Os canteiros terão em média 13,60m para isto foi o caminho do pedestre. de largura, dimensão suficiente para este propósito. Através da análise do sistema viário e do uso e ocupação do solo, op- tou-se por criar um calçadão em toda a extensão da Rua Bueno Brandão. Partindo da Avenida Duque de Caxias, este conectará o centro consoli- dado até a nova centralidade. “O que define uma centralidade é o movimento pelas vias - os fluxos -, ou seja, a circulação contínua de consumidores, trabalhadores, automó- veis, mercadorias, informações e idéias; a presença desses elementos e suas dinâmicas dão função aos espaços e definem territórios”. (MILA- NI;SILVA, 2009). Devido à importância das relações já existentes entre os conglomerados de comércio popular na cidade, que estão intrinsecamente ligados ao sistema de transporte público, a mesma lógica foi pensada para o atual projeto. Relocou-se o antigo mercado e junto a ele foi criado o terminal urbano, com infraestrutura necessária para servir os milhares usuários do transporte coletivo. Fig. 44 - Rambla de Barcelona 1 Rambla é um tipo de rua larga e com grande movimentação de pedestres típica da Catalunha, na Espanha. A mais conhecida das ramblas é a Rambla de Barcelona, que liga a Praça da Catalunha ao Porto Velho. 34
  • 35.
    1 2 Desapropriações As edificações acima serão desapropriadas para a criação do novo parque. O local frequentemente sofre com inundações devido a proximidade do Rio Mandu. O objetivo é reassentar os edifícios na área 5 (cinco). 5 3 01 - Requalificação de Av. Duque de Caxias 02 - Calçadão na Rua Bueno Brandão 03 - Centralidade 4 04 - Parque Municipal 05 - Expansão da malha urbana Fig. 45 - Plano de Massas para Pouso Alegre 35
  • 36.
    836,20 AVEN IDA D UQUE DE C AXIAS 835,80 829,80 841,10 S Fig. 47 CAXIA UE DE A DUQ Fig. 46 / 47 - Antes e depois - Proposta para Av. Duque de Caxias AVENID S CAXIA 834,70 DUQUE DE AVEN AVENIDA IDA D UQUE DE C ESTA AXIAS CION AMEN 829,50 TO 833,30 834,70 Fig. 48 - ÁREA 1 - NOVA PRAÇA NA AV. DUQUE DE CAXIAS 35 Escala: 1 / 500
  • 37.
    Fig. 49 -CORTE 1_1 37 Esc: 1 / 150
  • 38.
    A proposta écriar quiosques comerciais padronizados, utilizando boxes metálicos de três cores distintas. O cubo metálico poderá abrir totalmente por um sistema de portas bas- culantes dobráveis, proporcionando um sistema prático e que se destacará na paisagem Fig. 50 - CORTE 2_2 38 Esc: 1 / 150
  • 39.
    Fig. 52 Fig. 53 Fig. 51 Eixo de pedestres Conexão entre as áreas livres O eixo de pedestres, como mostra a Fig. 51 se conectará à centralidade através de uma rua com piso diferenciado, além de ser adotada uma iluminação pública na escala do pedestre. Grande parte dos edifícios desta rua são escolas e o trânsito se torna intenso nas proximidades durante o horário de saída dos alunos. Isso gera um conflito entre pe- destre e automóvel. Com a delimitação de locais distintos para o trânsito dos mesmos, será possível obter mais segurança para os pedestres e principalmente para os alunos que circulam na área. Este espaço, junto aos canteiros da Av. Duque de Caixas, também supri- rá a carência de áreas como os calçadões, que são quase inexistentes na cidade. As figuras 52, 53, e 54 mostram a Rua Bueno Brandão atu- almente, na qual as calçadas são muito estreitas, trazendo insegurança principalmente para as crianças. Fig. 54 39
  • 40.
    827,40 825,20 823,30 830,40 834,70 832,80 830,90 Fig. 55 Fig. 55 - Perspectiva do novo calçadão na Rua Bueno Brandão Escala: 1 / 750 Fig. 56 - ÁREA 2 - NOVO CALÇÃDÃO R. BUENO BRANDÃO 39 Escala: 1 / 750
  • 41.
    DET. 1 Fig. 57- CORTE 3_3 OU AREIA MÉDIA BLOCO Fig. 58 - CORTE 3_3 GROSSA DE BASE E Esc: 1 / 150 REAJUNTAMENTO INTERTRAVADO Esc: 1 / 150 AREIA MÉDIA OU BLOCO GROSSA DE BASE E INTERTRAVADO REAJUNTAMENTO PEDRISCO PEDRISCO CONTENÇÃO SOLO LATERAL 827,40 825,20 823,30 830,40 834,70 832,80 830,90 CONTENÇÃO SOLO LATERAL Fig. 59 - DET. 1 - PISO INTERTRAVADO - ASSENTAMENTO Esc: 1 / 150 41
  • 42.
    Fig. 60 -Calçadão em Londrina - PR Fig. 61 - Calçadão em São Paulo - SP Fig. 62 / 63 - Calçadão na cidade de Pouso Alegre O Parque Municipal ocupará a faixa entre a Avenida Antônio Mariosa e Os limites do Parque foram estipulados até o perímetro do Dique II, que as margens do Rio Mandú. A cidade não possui um parque central, além está sendo contruído e tem as seguintes finalidades: de ter poucas áreas verdes no perímetro urbano. Com o novo equipa- mento público haverá a aproximação dos habitantes do centro e prin- “A construção do Dique II garante a proteção de enchentes para mais cipalmente do bairro São Geraldo com a educação ambiental e com o de 650 famílias que vivem nas regiões dos bairros São Geraldo, Shan- lazer. O objetivo também é preservar a mata ciliar do Rio, que se encon- gri-lá, Costa Rios, Foch, Jardim Olímpico, São Carlos e Árvore Grande. tra ameaçada devido a construções irregulares e pela própria proposta A licença ambiental, engloba todo o sistema de contenção de enchentes do Plano Diretor, que classifica suas proximidades como Zona Mista 2. composto, em sua totalidade, por cinco diques. O projeto inicial previa a construção de uma avenida partindo da rotatória da rodoviária. ‘Hoje, Para a criação do Parque, será necessária a desapropriação de algumas temos um projeto completo de diques para solucionar, de verdade, o pro- construções localizadas próximas ao rio. Essa população será reloca- blema das enchentes’ explicou o secretário Maurício Sales. (...)”. (MG Sul da no terreno oposto ao da rodoviária, que também encontra-se vazio. News, ca. 2011)1. Propõe-se a alteração da área no Plano Diretor, que atualmente é clas- sificada como ZEP, para se tornar uma ZM 2. O ocupação desta área co- nectará o centro da cidade ao bairro Jardim Yara, proporcionando uma continuidade no tecido urbano fragmentado. 1 http://www.mgsulnews.com.br/meio-ambiente/1648-tecnicos-da-unifei-apresen- tam-projeto-da-dique-ii-de-pouso-alegre.html 42
  • 43.
    5.2. - TerminalRodoviário, Urbano e Mercado Municipal 5.2.1. Partido Arquitetônico O que norteou o partido do projeto foi a criação de espaços que se inter- relacionam em diferentes níveis. No pavimento térreo, que se encontra no mesmo nível da Avenida Antônio Mariosa, foi criado o terminal urbano e o setor de embarque e desembarque da rodoviária, além dos serviços de apoio como táxis, estacionamentos, guarda-volumes, sanitários, etc. Este nível possui uma praça voltada para esta mesma avenida. As árvo- res já existentes foram preservadas e foi possível a criação de um amplo espaço multiuso, com áreas sombreadas, abertas, de piso gramado e com textura em madeira ou em bloco intertravado, além de playground e pista da skate. O edifício é todo perméavel e pode ser acessado tanto pelo térreo quan- Fig. 64 / 65 - No novo Aeroporto de Montevidéu, o arquiteto Rafael Vignoli enfatiza as áreas públicas exploran- to pelo segundo pavimento. A disposição do bloco da rodoviária e do do ao máximo o aproveitamento de luz natural. A estrutura metálica sustenta uma grande cobertura em curva terminal urbano foi realizada de forma a aproveitar o maior sentido do terreno, enquanto o mercado se dispõe perperdicularmente a este. Foi pensado um sistema misto para a estrutura do edifício, modulada por pilares de concreto que vencem vãos de 15 metros e sustentam as lajes nervuradas em concreto protendido. Na cobertura, estes pilares embasam uma estrutura espacial metálica, a qual apresenta uma gran- de área vedada por policarbonato transparente, explorando a entrada de luz natural em todo o edifício. Pensou-se no conceito de planta livre para a possíbilidade de alteraração do layout de todo o complexo conforme às futuras necessidades. 43
  • 44.
    Telhas metálicas nacor cinza escuro vedam o volume do mercado que se destaca e o torna diferenciado. Para o bloco dos terminais, o fecha- mento será feito por painéis de chapa perfurada, que devido à sua per- meabilidade, transformarão o edifício em uma grande caixa iluminada durante à noite. Em todas as partes será possível a integração com o entorno. Uma pas- sarela será o elemento principal desta integração: ela partirá do final da Rua Bueno Brandão e permeará o complexo pelo terceiro piso, ras- gando o bloco principal e conectando-o diretamente ao novo parque. Vilanova Artigas também utiliza no Terminal Rodoviário de Jaú (Fig. 66 Fig. 66 / 67 - Situada em área central da cidade, o projeto aproveita inteli- e 67) uma passarela como elemento de conexão entre o edifício e duas gentemente a diferença de 6m nas cotas entre duas ruas paralelas, volta- ruas paralelas. Para Hazan (2007) a passarela é responsável por costu- das para praças, para organizar os acessos e percursos realizados interna- mente por meio de rampas, permitindo a passagem livre de pedestres, sem rar as fraturas urbanas, ou seja, espaços fragmentados que podem ser interferência com as plataformas de ônibus situadas em cota de altura intermediária. reestruturados criando-se novas espacialidades, tornando mais sólidas as intervenções realizadas nos espaços públicos de importância, que consequentemente, se relacionarão com os espaços marginais. Para Borja e Muxí (2003), a passarela enquanto espaço público siginifica oportunidade de ocupação de um espaço residual entre o que está cons- truído e o espaço viário. A requalificação da área através de um projeto que preza pela continuidade do percurso do pedestre e oferece espaços que priorizam a relações humanas, os encontros, as atividades cotidia- nas é uma opção de projeto urbano que gera espaços de transição de uso coletivo que respeitam o direito de cidadania. Com 10 metros de largura, ela não funcionará apenas como um ele- Com a existência do calçadão e da passarela, ficará mais fácil a loco- mento de passagem, mas também de diversas atividades. Pretende-se moção para as áreas centrais da cidade. As figuras a seguir são alguns com este espaço proporcionar um local para o acontecimento da feira exemplos de passarelas que admitem usos variados. Ao contrário da dos dias de domingo, que já ocorre nas adjacências da atual rodoviária. maioria das passarelas existentes, elas compõem um novo cenário, tor- nando-se lugares de estar, comércio, passagem, e contemplação. 44
  • 45.
    Fig. 68 -Passarela para pedestres com 106 m de vão, 140 de comprimento, largura variável de 11 a 15 Fig. 69 - O Highline Park foi criado onde antigamente existia uma linha de trem, mas que já estava abandona- m. Esta passarela construída sobre o rio Sena tem a particularidade de permitir o acesso dos pedestres da há muitos anos servindo de moradia para mendigos e drogados. Devido a forte pressão do grupo de ami- a partir de dois níveis: no superior ao ar livre, no inferior uma escada conduz pelo interior da própria gos do Highline a estrutura original foi mantida, reurbanizada e transformada num parque público municipal. estrutura metálica, até atingir o tabuleiro superior no centro do arco, onde ambos níveis se encontram. Fig. 70 - A Ponte Vecchio (Ponte Velha) é uma Ponte em arco medieval sobre o Rio Arno, em Florça, na Itália, famosa por ter diversas lojas ao longo de todo o tabuleiro. 45
  • 46.
    5.2.2. Programa denecessidades do edifício O programa do edifício foi pensado para garantir o conforto dos usuários e foi dimensionado de acordo com os seguintes critérios: - O Terminal Rodoviário foi dimensionado de acordo com os padrões do MITERP, e comparado com outros terminais que seguiram as mesmas diretrizes, como o Terminal de Taubaté, que na época em que foi pro- jetado (1976), possuia aproximadamente 130.000 habitantes1. Também foram considerados os levantamentos realizados na atual rodoviária, onde foram observados o número de plataformas de embarque, número de guichês, lanchonetes, sanitários, etc. Fig. 71 - Terminal de ônibus municipal em Poços de Caldas - Para o Terminal Urbano foi estipulado o dobro de plataformas exis- tentes no principal ponto de ônibus da cidade, o “terminal improvisa- do”. Além disso, alguns terminais de cidades com tamanho aproximado, como o da cidade de Poços de Caldas (Fig. 71) serviram de exemplo. - As dimensões do Mercado Municipal foram dobradas para suprir a falta de espaços livres que o Mercado atual apresenta. Para a formulação do programa de necessidades foi feita uma visita técnica no Mercado Muni- cipal de São Paulo (Fig. 72). - As dimensões dos espaços livres foram pensadas para suportar uma gama de atividades possíveis no local, com área de tamanho aproxima- do ao do antigo pátio da rodoviária 1 Dados obtidos através da seguinte bibliografia: LIMA, José Roberto da Costa - Os terminais rodoviários de passageiros do interior do Fig. 72 - Mercado Municipal de São Paulo Estado de São Paulo: ontem e hoje. -- São Paulo, 2004; 46
  • 47.
    PAVIMENTO TÉRREO: Rodoviária: Mercado Municipal 6 Sanitários (2 Masc., 2 Fem. 2 Acess.). 97,50 m² 1 Pátio para carga e descarga 8 vagas 1 Guarda volume / Achados e perdidos: 48,75 m² (Área de manobra) 600,00 m² 1 Balcão de informações: 11,04 m² (Área de recebimento) 729,53 m² 3 Vestiários func.(1 Masc., 1 Fem. 1 Acess). 48,78 m² 1 Casa de máquinas 27,56 m² 10 Vagas para táxis 1 Pista de skate 1224,00 m² 2 Locais para telefones públicos 3 Quiosques 11,04 m² cada 19 Baias para ônibus (embarque e desembarque) 2 Guaritas para controle dos ônibus 7,50 m² cada 276 Assentos na área de espera 6 Lojas e depósitos de encomendas 12,19 m² cada Embarque e desembarque (veículo particular) Terminal Urbano 10 Sanitários (4 Masc., 4 Fem. 4 Acess.) 120,00 m² 4 Quiosques 11,04 m² cada 16 Baias para ônibus (embarque e desembarque) 144 Assentos na área de espera Áreas externas 1 Estacionamento para carros 103 vagas 1 Estacionamento para vans / especial 12 vagas 1 Estacionamento para motos 22 vagas 47
  • 48.
    1° PAVIMENTO: 2° PAVIMENTO: Rodoviária: Praça de alimentação / Mercado Municipal: 1 Bilheteria 175,00 m² 8 Restaurantes 37,50 m² cada (19 Guichês) 6,25 m² cada 3 Quiosques 11,04 m² cada 3 Sanitários (1 Masc., 1 Fem. 1 Acess.) 18,72 m² 3 Sanitários (1 Masc., 1 Fem. 1 Acess.) 48,75 m² 1 Posto da PM 9,38 m² 52 Boxes comerciais fechados 14,89 m² cada 1 Posto do DNIT 9,38 m² 18 Boxes comerciais abertos 14,67 m² cada 1 Posto do DER 9,38 m² 1 Depósito 20,24 m² 1 Correios 9,38 m² 1 Administração 33,95 m² 1 Controle 9,38 m² 1 Administração 96,20 m² 1 Passarela de dimensões 10 x 245 m 2.450 m² 36 Assentos na área de espera Terminal Urbano: 1 Controle 9,38 m² 1 Administração 52,00 m² 48
  • 49.
    6. TERMINAL RODOVIÁRIO,URBANO E MERCADO MUNICIPAL plantas.cortes.perspectivas SEQUÊNCIA DOS DESENHOS TERMINAL RODOVIÁRIO E URBANO - Implantação geral - nível 816,50 ao 819,50 - Planta nível 816,50 ao 819,50 (parte 1) - Planta nível 816,50 ao 819,50 (parte 2) - Ampliação 1 - nível 816,50 ao 819,50 - Ampliação 2 - nível 816,50 ao 819,50 TERMINAL RODOVIÁRIO E URBANO - Implantação geral - nível 820,00 ao 823,00 - Planta nível 820,00 ao 823,00 - Ampliação 3 - nível 820,00 ao 823,00 PRAÇA DE ALIMENTAÇÃO E MERCADO MUNICIPAL - Implantação geral - nível 823,50 ao 827,00 - Planta nível 823,50 ao 827,00 (praça) - Planta nível 823,50 ao 827,00 (parte 1) - Planta nível 823,50 ao 827,00 (parte 2) - Ampliação 4 - nível 823,50 ao 827,00 - Ampliação 5 - nível 823,50 ao 827,00 PLANTA DE COBERTURA CORTES - Corte 1_1 - Corte 2_2 - Corte 3_3 - Corte 4_4 - Corte 5_5 - Corte 6_6 PERSPECTIVAS 49
  • 50.
    IMPLANTAÇÃO GERAL -NÍVEL 816,50 AO 819,50 50 Escala: 1 / 1500
  • 51.
    1 11 11 1 816,50 818,00 814,80 2 AMPLIAÇÃO 1 AMPLIAÇÃO 2 817,50 3 3 3 3 1 11 11 1 18 4 5 8 9 11 11 11 17 6 6 6 6 10 814,50 7 816,50 7 13 12 12 816,50 14 15 816,35 16 16 PLANTA NÍVEL 816,50 AO 819,50 1 Sanitários (M/F e acessível) 4 Táxis - 10 vagas 7 Sanitários (M/F e acessível) 10 Vestiário de Funcionários (M/F e aces.) 13 Balcão de informações 16 Guarita 816,50 51 Escala 1 / 500 2 Ônibus municipal: 16 baias 5 Embarque e desembarque 8 Achados e perdidos 11 Área para quiosques 14 Estacionamento - 103 vagas 17 Estacionamento especial - 12 vagas 3 Espera terminal urbano - 144 assentos 6 Loja e depósito de encomendas 9 Guarda-volume 12 Espera rodoviária - 308 assentos 15 Ônibus interurbano - 19 baias 18 Estacionamento motos - 22 vagas
  • 52.
    22 23 21 816,50 817,60 816,00 19 20 25 24 815,50 816,35 PLANTA NÍVEL 816,50 AO 819,50 19 Playground 22 Casa de máquinas 25 Estacionamento 103 vagas 52 Escala 1 / 500 20 Gramado 23 Pátio de carga e descarga 21 Deque 24 Pista de skate
  • 53.
    816,50 1 1 1 816,35 4 6 6 6 6 7 7 7 8 9 816,50 12 1 Sanitários (M/F e acessível) 7 Sanitários (M/F e acessível) 9 Guarda-volume AMPLIAÇÃO 1 - NÍVEL 816,50 AO 819,50 4 Táxis 8 Achados e perdidos 12 Espera rodoviária - 308 assentos 53 Escala 1 / 500 6 Loja e depósito de encomendas 9 Guarda-volume
  • 54.
    816,50 1 1 1 816,35 5 10 10 10 7 7 7 816,50 12 AMPLIAÇÃO 2 - NÍVEL 816,50 AO 819,50 1 Sanitários (M/F e acessível) 10 Vestiários (M/F e acessível) 54 Escala 1 / 150 5 Embarque e desembarque 12 Espera rodoviária - 276 assentos 7 Sanitários (M/F e acessível)
  • 55.
    IMPLANTAÇÃO GERAL -PLANTA NÍVEL 820,00 AO 823,00 55 Escala 1 / 1500
  • 56.
    AMPLIAÇÃO 3 26 27 28 29 30 31 32 33 36 820,00 34 37 35 PLANTA NÍVEL 820,00 AO 823,00 26 Bilheteria 19 postos 29 Posto DNIT 32 Correios 35 Controle rodoviária 56 Escala 1 / 500 27 Sanitários (M/F e acessível) 30 Posto DER 33 Copa 36 Administração terminal urbano 28 Posto PM 31 Controle terminal urbano 34 Almoxarifado 37 Administração rodoviária
  • 57.
    27 27 27 28 29 30 31 32 33 26 36 820,00 34 37 35 AMPLIAÇÃO 3 - NÍVEL 820,00 AO 823,00 26 Bilheteria - 19 postos 29 Posto DNIT 32 Serviços gerais 35 Controle rodoviária 57 Escala 1 / 150 27 Sanitários (M/F e acessível) 30 Posto DER 33 Copa 36 Administração terminal urbano 28 Posto PM 31 Controle terminal urbano 34 Almoxarifado 37 Administração rodoviária
  • 58.
    AMPLIAÇÃO 5 IMPLANTAÇÃO GERAL- NÍVEL 823,50 AO 827,00 58 Escala 1 / 1500
  • 59.
    38 823,50 39 PLANTA PRAÇA - NÍVEL 823,50 AO 827,00 38 Praça 59 Escala 1 / 500 39 Passarela
  • 60.
    39 44 41 44 40 40 40 40 40 40 40 40 44 42 11 44 44 43 11 823,50 823,50 44 44 44 44 11 7 45 45 44 44 45 45 11 43 44 7 45 45 44 10 44 11 45 45 44 10 45 45 44 11 10 44 44 AMPLIAÇÃO 4 44 45 45 44 44 44 45 45 44 44 44 45 45 44 44 44 45 45 44 44 PLANTA NÍVEL 823,50 AO 827,00 7 Sanitários (M/F e acessível) 39 Passarela 42 Depósito 45 Box comercial tipo 2 60 Escala 1 / 500 10 Vestiários (M/F e acessível) 40 Restaurante 43 Praça de alimentação 11 Área para quiosques 41 Administração mercado municipal 44 Box comercial tipo 1
  • 61.
    7 45 45 44 44 11 45 45 43 10 44 45 45 44 11 44 44 44 45 45 823,50 44 44 45 45 44 44 44 44 45 45 44 44 44 45 45 44 44 39 44 44 44 44 44 44 44 44 44 44 44 44 44 44 44 44 11 44 44 823,50 44 44 11 44 44 46 PLANTA NÍVEL 823,50 AO 827,00 7 Sanitários (M/F e acessível) 39 Passarela 45 Box comercial tipo 2 61 Escala 1 / 500 10 Vestiários (M/F e acessível) 43 Praça de alimentação 46 Monta-cargas 11 Área para quiosques 44 Box comercial tipo 1
  • 62.
    45 45 11 43 45 45 11 823,50 45 45 10 11 45 45 10 10 45 45 11 AMPLIAÇÃO 4 - NÍVEL 823,50 AO 827,00 7 Sanitários (M/F e acessível) 39 Passarela 45 Box comercial tipo 2 62 Escala 1 / 500 10 Vestiários (M/F e acessível) 43 Praça de alimentação 11 Área para quiosques 44 Box comercial fechado
  • 63.
    39 823,50 47 AMPLIAÇÃO 5 - NÍVEL 823,50 AO 827,00 39 Passarela 63 Escala 1 / 150 47 Acesso ao parque
  • 64.
    PLANTA DE COBERTURA 64 Escala 1 / 1500
  • 65.
  • 66.
  • 67.
  • 68.
  • 69.
  • 70.
  • 71.
    Fig. 73 -Perspectiva geral da nova Centralidade
  • 72.
    Fig. 74 -Perspectiva a partir da Praça da estação
  • 73.
    Fig. 75 -Perspectiva a partir da Rua Levino Ribeiro do Couto
  • 74.
    Fig. 76 -Deque na Praça da Estação - nível 816,50
  • 75.
    Fig. 77 -Perspectiva geral a partir do acesso à passarela
  • 76.
    Fig. 78 -Cruzamento entre a Av. Antônio Mariosa e a nova rua de acesso - nível 816,50
  • 77.
    Fig. 79 -Passarela de acesso ao Parque Municipal - nível 823,50
  • 78.
    Fig. 80 -Terminal de ônibus urbano de Pouso Alegre - nível 816,50
  • 79.
    Fig. 81 -Terminal rodoviário - área de espera - nível 816,50
  • 80.
    Fig. 82 -Terminal rodoviário - área de espera e escada rolante - nível 816,50
  • 81.
    Fig. 83 -Bilheteria - nível 820,00
  • 82.
    Fig. 84 -Praça de alimentação - nível 823,50
  • 83.
    Fig. 85 -Mercado Municipal de Pouso Alegre - nível 823,50
  • 84.
    Fig. 86 -Perspectiva geral interna
  • 85.
    Fig. 87 -Mercado Municipal a Partir da Rua Levino Ribeiro do Couto
  • 86.
    7. CONCLUSÃO A ascençãode Pouso Alegre transformou a cidade em um grande pólo O desafio do arquiteto está em materializar e solucionar as necessida- que vem apresentando sucessivas melhoras em seus indicadores eco- des levantadas durante o exercício projetual, de forma a agregar fun- nômicos. O município tornou-se grande influência para toda a região do cionalidade e conforto ao usuário. Por este motivo, foi importante a utili- Sul de Minas e será dentro de alguns anos a cidade mais rica, populosa zação de croquis e recursos gráficos computacionais, como a maquete e atraente para investimentos. eletrônica, que nos permite ter uma ideia mais abrangente daquilo fora projetado. O produto apresentado neste trabalho não deve ser encarado Em contrapartida, vem-se notando uma defasagem na aplicação dos como o resultado final do projeto de arquitetura, mas sim, como o impul- recursos públicos em projetos sociais, se comparados aos privados e de so para uma mobilização acerca de uma nova perspectiva de progresso interesses econômicos. Prioriza-se a criação de distritos industriais, du- urbano e social para Pouso Alegre. plicação de avenidas, criação de acessos rodoviários e de loteamentos de alto padrão. As soluções apresentadas para os problemas sociais e ambientais ao longo deste tempo tornaram-se praticamente nulas. Através deste trabalho foi possível repensar a forma de produzir uma cidade para torna-la mais habitável e menos desigual. Os estudos reali- zados ao longo deste tempo comprovaram o potêncial urbano de áreas que atualmente encontram-se em más condições a apresentam-se em situação de abandono, transformando-as em espaços públicos que co- nectam e expandem os domínios do centro de Pouso Alegre, atualmente defasado em relação a dimensão da cidade. Repensar a infraestrutura no transporte público, a melhoria dos seus es- paços, a ampliação e realocação de centros comerciais já consolidados, como o Mercado Municipal, foram desafios que me levaram a observar a região como um todo e a denominar este projeto como uma Nova Cen- tralidade para Pouso Alegre. 86
  • 87.
    8. BIBLIOGRAFIA LIMA, JoséRoberto da Costa. Os terminais rodoviários de passageiros CORRÊA, Roberto Lobato. Construindo o Conceito de Cidades Médias. do interior do Estado de São Paulo: ontem e hoje / José Roberto da Cos- In: SPOSITO, Maria Encarnação Beltrão. (org.). Cidades Médias: espa- ta Lima. -- São Paulo, 2004. ços em transição. São Paulo: Expressão Popular, 2007, p.23-33. SUZUKI, Juliana Harumi - Artigas e Cascaldi, Arquitetura em Londrina. HAZAN, Vera Magiano. As passarelas urbanas como novos vazios úteis São Paulo, Ateliê editorial, 2003. na paisagem contemporânea. Rio de Janeiro, 2007. BRASIL, Departamento Nacional de Estradas de Rodagens, Divisão de BORJA, Jordi; MUXÍ, Zaida. “Espacio Público. El espacio público: ciudad Transportes de Passageiros. Terminais Rodoviários de Passageiros - y cidadanía”. Ed. Eletcta, Barcelona, Espanha, 2003. Anteprojetos Primários, elaborado de acordo com as Disposições Cons- tantes do Manual de Implantação de Terminais Rodoviários de Passa- LEFEBVRE, H. A revolução urbana. Belo Horizonte: Ed. UFMG, 2004. geiros (MITERP). Rio de Janeiro, Serv.Publ. 1978. GOVERNO DO ESTADO DE SÃO PAULO - ARTESP - Manual de Aces- POUSO ALEGRE, Prefeitura Municipal. Plano Diretor do Município de sibilidade - Terminais Rodoviários. Sâo Paulo, 2009. Pouso Alegre. Pouso Alegre, Serv. Publ. 2008. MILANI, Patrícia Helena; SILVA, Edima Aranha. Centralidade Urbana. GRIMALDI, Renato Penteado Silva. Projeto do sistema de terminais ro- Um estudo do centro principal de Tres Lagoas - MS. Geografia em Atos, doviários de passageiros para Sâo Paulo. São Paulo, 1977. n. 9, v.1. UNESP, Presidente Prudente, 2009. SILVA, Pedro Schünemann Christófaro. Rede de avaliação e capaci- BARBOSA, André SIlva; ANDRADE, Alexandre Carvalho de; SANTOS, tação para a implementação dos Planos Diretores Participativos. Belo Isabel Cristina. Central, porém marginal: O bairro São Geraldo no con- Horizonte, 2008. texto socioespacial da cidade de Pouso Alegre - MG. Pouso Alegre, 2011. ASSIS, Eduardo Moreira. A cidade e o “mal necessário”: Zona de Pros- tituição, marginalidade social e disputa pelos espaços urbanos (Pouso FARIA, Rivaldo Mauro de.Território urbano e o processo saúde-doença : Alegre-MG, 1969 - 1988). São Paulo, 2005 perfil territorial da saúde no São Geraldo em Pouso Alegre - MG / Rivaldo Mauro de Faria. -- Campinas, SP : [s.n.], 2008. 87
  • 88.
    Internet (janeiro anovembro de 2012) http://www.tvuai.com.br/pousoalegre/resumo/abertura.html http://www.mackenzie.br/fileadmin/Graduacao/FAU/Publicacoes/PDF_ IIIForum_a/MI_FORUM_MARIA_AUGUSTA_3.pdf http://www.pousoalegre.mg.gov.br http://www.vitruvius.com.br/revistas/read/arquitextos/10.119/3371 http://www.vidroimpresso.com.br http://www.arcoweb.com.br/arquitetura/reis-arquitetura-terminal-rodo- viario-15-07-2011.html http://www.vitruvius.com.br/revistas/read/arquitextos/12.138/4113 http://www.mercadomunicipaldecuritiba.com.br/ http://www.constructalia.com/portugues_br/galeria_de_projetos/franca/ passarela_simone_de_beauvoir http://www.vitruvius.com.br/revistas/read/arquitextos/10.114/11 http://www.fosterandpartners.com/projects/0953/default.aspx http://www.arcoweb.com.br/especiais/balanco-deca- da-2000-11-02-2011.html#transportes http://www.arcoweb.com.br/arquitetura/nucleo-arquitetura-terminal- de-07-04-2004.html http://www.arcoweb.com.br/arquitetura/nucleo-arquitetura-terminal- de-07-04-2004.html 88