desenho técnico
_______________________________________________________________________________
_______________________________________________________________________________
Curso Técnico de Eletrônica
Desenho Técnico
Volume único
Unidade Operacional - Senai “Alvimar Carneiro de Rezende”
SENAI-CFP “Alvimar Carneiro de Rezende”
Via Sócrates Marianni Bittencourt, 711 – CINCO
CONTAGEM – MG – Cep. 32010-010
Tel. 31-3352-2384 – E-mail: cfp-acr@fiemg.com.br
desenho técnico
_______________________________________________________________________________
_______________________________________________________________________________
Curso Técnico de Eletrônica
Presidente da FIEMG
Robson Braga de Andrade
Gestor do SENAI
Petrônio Machado Zica
Diretor Regional do SENAI e
Superintendente de Conhecimento e Tecnologia
Alexandre Magno Leão dos Santos
Gerente de Educação e Tecnologia
Edmar Fernando de Alcântara
Elaboração
Equipe Técnica
Digitalizado e modificado por:
Prof. Sérgio Goulart Alves Pereira
Revisado por:
Prof. Célio Batista de Souza
Versão 4.0 – 1/2005
Unidade Operacional
Centro de Formação profissional “Alvimar Carneiro de Rezende”
desenho técnico
_______________________________________________________________________________
_______________________________________________________________________________
Curso Técnico de Eletrônica
Sumário
1. INTRODUÇÃO ____________________________________________________________ 6
2. MATERIAIS E INSTRUMENTOS _________________________________________________ 9
2.1 TIPOS DE INSTRUMENTOS ________________________________________________ 9
2.2 FORMATOS DE PAPEL ___________________________________________________ 23
3. CALIGRAFIA TÉCNICA ______________________________________________________ 28
4. LINHAS CONVENCIONAIS ____________________________________________________ 35
5. PROJEÇÕES ORTOGONAIS ___________________________________________________ 41
6. DIMENSIONAMENTO E SIMBOLOGIA _____________________________________________ 54
6.1 REPRESENTAÇÃO DAS COTAS _____________________________________________ 54
6.2 REGRAS DE COTAGEM __________________________________________________ 55
6.3 SÍMBOLOS E CONVENÇÕES _______________________________________________ 60
7. ESCALAS _______________________________________________________________ 64
7.1 ESCALA NATURAL _____________________________________________________ 64
7.2 ESCALA DE REDUÇÃO __________________________________________________ 64
7.3 ESCALAS DE AMPLIAÇÃO ________________________________________________ 65
8. CORTES E SEÇÕES ________________________________________________________ 69
8.1 INTRODUÇÃO _________________________________________________________ 69
8.2 RUPTURAS___________________________________________________________ 72
9. PERSPECTIVA ISOMÉTRICA __________________________________________________ 73
10. PROJEÇÕES ORTOGONAIS 3ºDIEDRO __________________________________________ 76
REFERÊNCIAS BIBLIOGRÁFICAS _________________________________________________ 78
desenho técnico
_______________________________________________________________________________
_______________________________________________________________________________
Curso Técnico de Eletrônica
Lista de figuras
Fig. 01 - Descrição verbal _____________________________________________________ 7
Fig. 02 – Fotografia ___________________________________________________________ 7
Fig. 03 – Modelo _____________________________________________________________ 8
Fig. 04 - Desenho técnico _______________________________________________________ 8
Fig. 05 - Tabela de seções de lápis ________________________________________________ 11
Fig. 06 – Lápis _______________________________________________________________ 11
Fig. 07 - Lixar lápis ___________________________________________________________ 12
Fig. 08 - Traçado do lápis _______________________________________________________ 12
Fig. 09 - Chanframento da borracha _______________________________________________ 13
Fig. 10 - Exercícios das linhas ___________________________________________________ 14
Fig. 11 - Régua milimetrada _____________________________________________________ 15
Fig. 12 - Graduações da régua milimetrada _________________________________________ 15
Fig. 13 – Fazendo traços com a régua milimetrada ___________________________________ 16
Fig. 14 – Régua T _____________________________________________________________ 16
Fig. 15 – Uso correto da Régua T _________________________________________________ 16
Fig. 16 – Exercícios leitura de medida – régua milimetrada ____________________________ 18
Fig. 17 – Linhas para medir com a régua milimetrada _________________________________ 18
Fig. 18 – Esquadros ___________________________________________________________ 19
Fig. 19 – Traços verticais com Esquadros __________________________________________ 19
Fig. 20 – Movimentação dos Esquadros sobre a régua T _______________________________ 20
Fig. 21 – Exercícios – Linhas verticais ____________________________________________ 21
Fig. 22 – Exercícios – Linhas inclinadas ___________________________________________ 21
Fig. 23 – Exercícios – Linhas inclinadas 30º e 60º ____________________________________ 21
Fig. 24 – Tipos de compassos ____________________________________________________ 22
Fig. 25 – Ponta de grafite do compasso ____________________________________________ 22
Fig. 26 – Etapas de uso correto do compasso ________________________________________ 23
Fig. 27 – Exercícios com compasso – círculos _______________________________________ 24
Fig. 28 – Exercícios com compasso – semicírculos ___________________________________ 25
Fig. 29 – Formato A4 - a área de 1 m2
_____________________________________________ 26
Fig. 30 – Formato A4 e seus derivados ____________________________________________ 27
Fig. 31 – Tabela de dimensões de formatos _________________________________________ 28
Fig. 32 – Dobramento de formatos ________________________________________________ 29
Fig. 33 – Margens de formatos ___________________________________________________ 29
Fig. 34 – Legenda de formatos ___________________________________________________ 30
Fig. 35 – Dimensões de formatos _________________________________________________ 30
Fig. 36 – Escrita à mão livre _____________________________________________________ 31
Fig. 37a – Escrita à mão livre – posição da mão _____________________________________ 32
Fig. 37b – Exercício de caligrafia _________________________________________________ 33
Fig. 37c – Exercício de caligrafia _________________________________________________ 33
Fig. 37d – Exercício de caligrafia _________________________________________________ 34
Fig. 38 – Escrita letra em itálico __________________________________________________ 35
Fig. 39 – Linhas grossas e de traço contínuo ________________________________________ 36
Fig. 40 – Linhas grossas tracejadas _______________________________________________ 36
Fig. 41 – Linhas finas traço-ponto ________________________________________________ 37
Fig. 42 – Linhas de Cota ________________________________________________________ 37
Fig. 43 – Linhas de Chamada ou Extensão _________________________________________ 37
Fig. 44 – Linhas de Corte _______________________________________________________ 38
Fig. 45 – Linhas para Hachuras __________________________________________________ 38
Fig. 46 – Linhas para Rupturas Curtas _____________________________________________ 39
Fig. 47 – Linhas para Rupturas Longas ____________________________________________ 39
Fig. 48 – Linhas para Representações Simplificadas __________________________________ 39
Fig. 49 – Exercícios sobre linhas _________________________________________________ 40
Fig. 50 – Exercícios sobre linhas _________________________________________________ 40
Fig. 51 – Plano de projeção _____________________________________________________ 41
Fig. 52 – Plano de projeção de uma caixa de fósforos ________________________________ 41
Fig. 53 – Projeções verticais ou elevações de peça ___________________________________ 42
Fig. 54 – Projeção Horizontal Vista de Cima ou planta _______________________________ 42
desenho técnico
_______________________________________________________________________________
_______________________________________________________________________________
Curso Técnico de Eletrônica
Fig. 55 – Projeção Horizontal Vista de Cima ou planta _______________________________ 43
Fig. 56 – Vista Lateral _________________________________________________________ 43
Fig. 57 – Vista de Frente – Vista de Cima _________________________________________ 44
Fig. 58 – Vista de Frente – Vista de Lado __________________________________________ 44
Fig. 59 – Vista de Frente – Vista de Cima – Vista de Lado ____________________________ 45
Fig. 60 – Exercícios - Vista de Frente – Vista de Cima – Vista de Lado __________________ 46
Fig. 61 – Exemplos – Três Vistas ________________________________________________ 47
Fig. 62 – Exemplos – Linhas tracejadas representando arestas não visíveis ________________ 47
Fig. 63 – Exemplos – Linhas de Centro ___________________________________________ 48
Fig. 64 – Exemplos – Eixos de Simetria ___________________________________________ 48
Fig. 65 – Exercícios – Projeções Ortogonais ________________________________________ 49
Fig. 66 – Exercícios – Projeções Ortogonais ________________________________________ 50
Fig. 67 – Exercícios de Projeções Ortogonais _______________________________________ 51
Fig. 68 – Exercícios de Projeções Ortogonais _______________________________________ 52
Fig. 69 – Uso de duas vistas ____________________________________________________ 53
Fig. 70 – Uso de uma única vista ________________________________________________ 53
Fig. 71 – Representação de Cotas _________________________________________________ 54
Fig. 72 – Elementos de Cotagem de Desenho _______________________________________ 55
Fig. 73 – Regras de Cotagem de Desenho __________________________________________ 55
Fig. 74 – Representação de Cotagem de seções quadradas e circulares ___________________ 56
Fig. 75 – Posição correta dos números de cota ______________________________________ 56
Fig. 76 – Representação de Cotas na melhor vista ____________________________________ 57
Fig. 77 – Representação do número de Cotagem dentro/fora do elemento _________________ 58
Fig. 78 – Exercícios - Representação da Cotagem ____________________________________ 59
Fig. 79 – Exercícios - Representação da Cotagem ____________________________________ 60
Fig. 80 – Simbologia e Convenções _______________________________________________ 61
Fig. 81 – Dispensa de simbologia para diâmetro ou quadrado ___________________________ 61
Fig. 82 – Simbologia em Materiais Perfilados _______________________________________ 62
Fig. 83a – Escala Natural _______________________________________________________ 64
Fig. 83b – Escala com Redução __________________________________________________ 65
Fig. 83c – Escala com Ampliação ________________________________________________ 65
Fig. 83d – Leitura de Escala _____________________________________________________ 66
Fig. 83e – Ângulos em Desenhos _________________________________________________ 66
Fig. 84 – Exercícios de Escalas __________________________________________________ 67
Fig. 85 – Exercícios de Escalas __________________________________________________ 68
Fig. 86 – Cortes e Seções _______________________________________________________ 69
Fig. 87 – Plano de Corte ________________________________________________________ 69
Fig. 88 – Peça cortada _________________________________________________________ 70
Fig. 89 – Vistas da Peça Cortada _________________________________________________ 70
Fig. 90 – Exercícios Cortes e Seções ______________________________________________ 71
Fig. 91 – Rupturas ____________________________________________________________ 72
Fig. 92 – Peça com Rupturas ____________________________________________________ 72
Fig. 93 - Peça desenhada em perspectiva isométrica __________________________________ 73
Fig. 94 – Ângulos da Perspectiva Isométrica ________________________________________ 74
Fig. 95 – Seqüência de Traçado da Perspectiva Isométrica _____________________________ 74
Fig. 96 – Seqüência de Traçado da Perspectiva Isométrica para Elementos Cilíndricos e Arcos 75
Fig. 97 – Fases do traçado à mão livre de elementos cilíndricos e arcos ___________________ 75
Fig. 98 – Distribuição das Vistas _________________________________________________ 76
Fig. 99 – Distribuição das Vistas _________________________________________________ 76
Fig. 100 – Exercícios Terceiro Diedro _____________________________________________ 77
desenho técnico – pág. 6
_______________________________________________________________________________
_______________________________________________________________________________
Curso Técnico de Eletrônica
Apresentação
“Muda a forma de trabalhar, agir, sentir, pensar na chamada sociedade do
conhecimento”.
Peter Drucker
O ingresso na sociedade da informação exige mudanças profundas em todos os
perfis profissionais, especialmente naqueles diretamente envolvidos na produção,
coleta, disseminação e uso da informação.
O SENAI, maior rede privada de educação profissional do país, sabe disso, e
consciente do seu papel formativo, educa o trabalhador sob a égide do conceito
da competência: “formar o profissional com responsabilidade no processo produtivo,
com iniciativa na resolução de problemas, com conhecimentos técnicos aprofundados,
flexibilidade e criatividade, empreendedorismo e consciência da necessidade de
educação continuada.”.
Vivemos numa sociedade da informação. O conhecimento, na sua área
tecnológica, amplia-se e se multiplica a cada dia. Uma constante atualização se
faz necessária. Para o SENAI, cuidar do seu acervo bibliográfico, da sua infovia,
da conexão de suas escolas à rede mundial de informações -internet- é tão
importante quanto zelar pela produção de material didático.
Isto porque, nos embates diários, instrutores e alunos, nas diversas oficinas e
laboratórios do SENAI, fazem com que as informações, contidas nos materiais
didáticos, tomem sentido e se concretizem em múltiplos conhecimentos.
O SENAI deseja, por meio dos diversos materiais didáticos, aguçar a sua
curiosidade, responder às suas demandas de informações e construir links entre
os diversos conhecimentos, tão importantes para sua formação continuada!
Gerência de Educação e Tecnologia
desenho técnico – pág. 7
_______________________________________________________________________________
_______________________________________________________________________________
Curso Técnico de Eletrônica
1. Introdução
Quando vamos executar uma determinada peça na oficina de nossa escola ou na indústria,
necessitamos receber todas informações e dados sobre a mesma. Estas informações
poderiam ser apresentadas de várias formas, tais como:
1. Descrição verbal da peça.
2. Fotografia da peça.
3. Modelo da peça.
4. Desenho técnico da peça.
Se analisarmos cada uma destas formas, veremos que nem todas proporcionam as
informações indispensáveis para a execução da peça, senão, vejamos:
Descrição Verbal - Não é o bastante
para transmitir as idéias de forma e
dimensões de uma peça, mesmo que ela
não seja muito comp1icada. Se
experimentarmos descrever, usando
somente o recurso da palavra, um
objeto, de maneira que outra pessoa o
execute, concluiremos que isso é
praticamente possível.
Fig. 1. - Descrição verbal
A Fotografia - Transmite relativamente
bem a idéia da parte exterior da peça,
mas não mostra seus detalhes internos e
nem suas dimensões. Logo, a fotografia
também não resolve o nosso problema.
desenho técnico – pág. 8
_______________________________________________________________________________
_______________________________________________________________________________
Curso Técnico de Eletrônica
Fig. 2. - Fotografia
O Modelo - Resolve, até certo ponto,
alguns problemas. Nem todos, porém.
Por exemplo, se tivéssemos que
transportar uma peça de grande
tamanho, para reproduzi-1a pelo
modelo... Além disso, a peça o pode
estar sendo "projetada", não existindo
ainda um modelo da mesma.
Fig. 3. - Modelo
Desenho técnico - Pode transmitir, com
clareza, precisão e de maneira simples,
todas as idéias de forma e dimensões de
uma peça. Além disso, há uma série de
outras informações necessárias que
somente o desenho pode dar, tais
como:. O material de que é feita a peça,
os acabamentos de sua superfície, as
tolerâncias de suas medidas etc. Fig. 4. - Desenho técnico
Portanto, o conhecimento de Desenho Técnico é indispensável a todos aqueles que
necessitam executar tarefas que sejam de ajustagem, tornearia, marcenaria, eletricidade etc.
desenho técnico – pág. 9
_______________________________________________________________________________
_______________________________________________________________________________
Curso Técnico de Eletrônica
O Desenho Técnico é usado na indústria pelos engenheiros, projetistas, desenhistas,
mestres e operários qualificados, como uma linguagem técnica universal, pela qual se
expressam e registram idéias e dados para a construção de móveis, máquinas e estruturas.
Sendo uma linguagem gráfica universal, o Desenho técnico possui normas específicas para
o seu traçado e interpretação. Estas normas são elaboradas por entidades especia1izadas
que padroniza e normaliza o seu emprego.
No Brasil, a ABNT - Associação Brasileira de Normas Técnicas - padronizou as normas
NB-8, NB-13 e outras, que fixam as condições gerais que devem ser observadas na
execução dos desenhos técnicos e representações convencionais.
Para que o emprego do desenho técnico se torne fácil e preciso, recorre-se ao uso de
instrumentos apropriados, chamando-se, neste caso, "Desenho com instrumentos”. Quando
executado à mão, sem o auxílio de instrumentos, denomina-se “Desenho à Mão Livre” ou
“Esboço”.
O nosso objetivo é estudar e exercitar a linguagem universal do desenho técnico, a fim de
expressá-la e escrevê-la com clareza, bem como interpreta-la quando escrita por outrem.
O objetivo do estudo de desenho não é formação de desenhistas, mas sim a preparação
daqueles que irão orientar-se por meio do desenho, na escola e na vida profissional, dando-
lhes condições de:
Ler e Interpretar, com segurança, desenhos técnicos de sua especialidade, de acordo com as
normas da ABNT;
Executar traçados à mão livre e com instrumentos básicos, como forma de expressão de
sua linguagem técnica.
desenho técnico – pág. 10
_______________________________________________________________________________
_______________________________________________________________________________
Curso Técnico de Eletrônica
Exercícios
1. Para executarmos uma peça, o modo que transmite, com clareza e precisão, todas as
idéias de forma e dimensões, é:
a) Fotografia da peça.
b) Desenho da peça.
c) Descrição verbal da peça.
d) Modelo da peça.
2. O ensino do Desenho Técnico, no curso que você está fazendo, visa a:
a) Formá-lo desenhista.
b) Dar-lhe disciplina intelectual.
c) Prepará-lo e orientá-lo para, por meio dele, executar peças em oficina.
d) Dar-lhe habilidade manual.
3. O Desenho pode dar as seguintes informações, além das de forma e dimensões:
a) O material da peça e o acabamento de sua superfície.
b) O nome do operário que a executará.
c) Somente as informações de forma e dimensões.
Justifique:
desenho técnico – pág. 11
_______________________________________________________________________________
_______________________________________________________________________________
Curso Técnico de Eletrônica
2. Introdução
2.1 TIPOS DE INSTRUMENTOS
2.1.1 LÁPIS
O lápis, instrumento básico para o traçado de desenhos. Pode ser de seção redonda ou
hexagonal.
Classifica-se em função da dureza de sua grafita.
A dureza da grafita é indicada por números, letras ou ambos.
Os lápis de seções hexagonais, mais adequados para desenho, são classificados de acordo
com as letras B. F e H. Os lápis de seção redonda, comumente encontrados no comércio
para uso geral são classificados pelos números 1. 2 e 3, correspondentes às hexagonais, de
acordo com a tabela abaixo.
Ao fazer a ponta no lápis, deve-se ter o cuidado de fazê-la na extremidade oposta àquela
onde se encontra indicada a dureza da grafite. Caso contrário, o reconhecimento do lápis de
acordo com sua dureza será bem difícil.
Fig. 5 - Tabela de seções de lápis
Fig. 6 - Lápis
desenho técnico – pág. 12
_______________________________________________________________________________
_______________________________________________________________________________
Curso Técnico de Eletrônica
Para o afinamento da grafite é interessante ter uma tira de1ixa fina colada em um pedaço
de madeira.
A utilização do lápis será feita da seguinte maneira: Quando quisermos traçar 1inhas
grossas e médias, usaremos o 1ápis HB ou nº 2, dando-se a pressão necessária para obter o
tipo de linha desejado. As 1inhas finas devem ser traçadas com o lápis H, 2H ou nº 3.
O lápis, durante o traçado, deve ser sempre puxado e nunca empurrado.
Ao traçar uma linha com o auxilio de régua ou esquadro, deve-se manter o lá pis numa
posição inclinada em toda a sua extensão. A ilustração abaixo mostra a maneira correta de
segurar o lápis.
Fig. 7 - Lixar lápis
Fig. 8 – Traçado do lápis
desenho técnico – pág. 13
_______________________________________________________________________________
_______________________________________________________________________________
Curso Técnico de Eletrônica
2.1.1 BORRACHA
A borracha para apagar desenhos a 1ápis deve ser macia e flexível. Para facilitar o trabalho
de apagar, em trechos pequenos, a borracha deve ser chanfrada numa das extremidades.
Este chanfro é obtido raspando-a numa superfície áspera.
Fig. 9 – Chanframento da borracha
desenho técnico – pág. 14
_______________________________________________________________________________
_______________________________________________________________________________
Curso Técnico de Eletrônica
E
Ex
xe
er
rc
cí
íc
ci
io
os
s
Complete os exercícios abaixo, obedecendo, no traçados, a orientação dada pelas setas.
Use o lápis nº 2 ou HB. Conserve o mesmo afastamento entre as linhas.
Fig. 10 - Exercícios das linhas
desenho técnico – pág. 15
_______________________________________________________________________________
_______________________________________________________________________________
Curso Técnico de Eletrônica
2.1.3 RÉGUAS
Existem diversos tipos de réguas, sendo as mais empregadas: a régua graduada e a régua
"T".
A) Régua Graduada
Ela consiste numa peça reta (plana), tendo graduações em ambas as arestas, para a
marcação de medidas. Existem réguas graduadas em milímetros ou em polegadas e
algumas possuem as duas graduações em arestas opostas.
As réguas graduadas servem para tomar e aplicar medidas lineares, portanto, não devem
ser utilizadas para auxiliar nos traçados de linhas. Geralmente a graduação impressa na
régua, produz pequenas depressões; por isso, as linhas traçadas com tais réguas resultam
em linhas irregulares.
Fig. 11 – Régua milimetrada
Fig. 12 – Graduações da régua milimetrada
desenho técnico – pág. 16
_______________________________________________________________________________
_______________________________________________________________________________
Curso Técnico de Eletrônica
Para medir ou marcar medidas coma régua, deve-se fixá-la sobre o local que se quer medir
ou marcar. Para evitar erros, deve-se marcar a medida a partir do traço zero da régua.
desenho técnico – pág. 17
_______________________________________________________________________________
_______________________________________________________________________________
Curso Técnico de Eletrônica
2.1.4 Régua “T”
Consiste em uma haste reta e plana, tendo numa das extremidades uma travessa (cabeça)
perpendicular à haste.
Fig. 14 – Régua T
Fig. 15 – Uso correto da Régua T
Fig. 13 – Fazendo traços com a régua milimetrada
desenho técnico – pág. 18
_______________________________________________________________________________
_______________________________________________________________________________
Curso Técnico de Eletrônica
A cabeça da régua "T" deve ser firmemente encostada ao lado esquerdo do tampo da
prancheta (mesa), sendo deslocada com a mão esquerda. O deslocamento da haste será
paralelo à posição primitiva. A régua "T" é utilizada para traçar linhas horizontais. As
linhas são sempre iniciadas da esquerda para a direita e na parte superior da haste,
conforme, as ilustrações abaixo:
Antes de utilizá-la, deve-se limpá-las com um pano e álcool.
As réguas devem ser guardadas sobre uma superfície plana ou penduradas verticalmente
para evitar empenos.
desenho técnico – pág. 19
_______________________________________________________________________________
_______________________________________________________________________________
Curso Técnico de Eletrônica
Exercícios
Escreva na linha, acima de cada figura, a medida indicada pela seta.
Com o auxílio da régua graduada, meça o comprimento das linhas abaixo e coloque a
medida encontrada acima de cada uma delas, conforme o exemplo.
Analise as afirmações abaixo e coloque um (V) nas verdadeiras e um (F) nas falsas:
1. ( ) A régua "T" serve para traçar linhas horizontais.
2. ( ) A graduação da régua pode ser em milímetros e polegadas.
3. ( ) Na régua graduada, a leitura se inicia no traço zero, a fim de evitar erros.
4. ( ) A régua graduada é utilizada para traçar linhas retas.
5. ( ) As réguas mais usadas são: a régua "T" e a régua graduada.
6. ( ) A régua "T" ê deslocada com a mão esquerda.
7. ( ) As réguas graduadas, são utilizadas, somente para medir.
Fig. 16 – Exercícios leitura de medida – régua milimetrada
Fig. 17 – Linhas para medir com a régua milimetrada
desenho técnico – pág. 20
_______________________________________________________________________________
_______________________________________________________________________________
Curso Técnico de Eletrônica
2.1.5 ESQUADROS
Os esquadros são instrumentos de desenho, de forma triangular.
Os mais utilizados são os seguintes:
• Esquadro de 45º, composto por dois ângulos de 45º e um de 90º.
• Esquadro de 60º, composto por ângulos de 30º, 60º e 90º.
Fig. 18 - Esquadros
Fig. 19 – Traços verticais com Esquadros
desenho técnico – pág. 21
_______________________________________________________________________________
_______________________________________________________________________________
Curso Técnico de Eletrônica
Os esquadros são utilizados como auxiliares no traçado de retas verticais e inclinadas. O
traçado destas retas segue a direção das setas indicadas na ilustração abaixo.
Fig. 20 – Movimentação dos Esquadros sobre a régua T
desenho técnico – pág. 22
_______________________________________________________________________________
_______________________________________________________________________________
Curso Técnico de Eletrônica
Exercícios
1. Utilizando a régua "T" e um dos esquadros, complete o exercício abaixo. Conserve os
mesmos afastamentos entre as linhas, medindo-os coma régua graduada.
2. Verifique as inclinações com que foram traçadas as linhas abaixo e complete os
exercícios, conservando o mesmo afastamento e inclinação das linhas indicadas.
3. O exercício abaixo foi traçado com os ângulos de 30º e 60º. Complete o exercício,
utilizando esquadro e régua "T".
Fig. 21 – Exercícios – Linhas verticais
Fig. 22 – Exercícios – Linhas inclinadas
Fig. 23 – Exercícios – Linhas inclinadas 30ºe 60º
desenho técnico – pág. 23
_______________________________________________________________________________
_______________________________________________________________________________
Curso Técnico de Eletrônica
2.1.6 COMPASSOS
São instrumentos utilizados para traçar arcos de circunferências, circunferências e
transportar medidas. Existem vários tipos de compassos, sendo os mais comuns os
apresentados abaixo:
A ponta da grafita deve estar sempre um pouco mais curta que a outra e deve ser
chanfrada. para maior perfeição dos traçados.
Fig. 24 – Tipos de compassos
Fig. 25 – Ponta de grafite do compasso
desenho técnico – pág. 24
_______________________________________________________________________________
_______________________________________________________________________________
Curso Técnico de Eletrônica
Para traçar arcos e circunferências, dá-se ao compasso uma abertura igual ao raio desejado,
com o auxílio da régua graduada e executa-se o traçado de acordo com o apresentado nas
figuras em seqüência abaixo.
Fig. 26 – Etapas de uso correto do compasso
desenho técnico – pág. 25
_______________________________________________________________________________
_______________________________________________________________________________
Curso Técnico de Eletrônica
Exercícios
Complete com o compasso os exercícios abaixo, utilizando os centros indicados:
Complete os exercícios, conforme os modelos indicados abaixo:
Fig. 27 – Exercícios com compasso - círculos
Fig. 28 – Exercícios com compasso – semicírculos
desenho técnico – pág. 26
_______________________________________________________________________________
_______________________________________________________________________________
Curso Técnico de Eletrônica
2.2 FORMATOS DE PAPÉIS
desenho técnico – pág. 27
_______________________________________________________________________________
_______________________________________________________________________________
Curso Técnico de Eletrônica
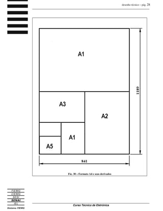
O formato básico de papel, designado por A0 (A zero), e o do retângulo de lados medindo
841 mm e 1189 mm, tendo a área de 1 m2
. Do formato básico, derivam-se os demais
formatos.
Fig. 29 – Formato A4 - a área de 1 m2
.
desenho técnico – pág. 28
_______________________________________________________________________________
_______________________________________________________________________________
Curso Técnico de Eletrônica
Fig. 30 – Formato A4 e seus derivados
desenho técnico – pág. 29
_______________________________________________________________________________
_______________________________________________________________________________
Curso Técnico de Eletrônica
Dobramento de formatos
Efetua-se o dobramento a partir do lado “d” (direito) em dobras verticais de 185 mm. A
parte final “a” é dobrada ao meio.
Fig. 31 – Tabela de dimensões de formatos
desenho técnico – pág. 30
_______________________________________________________________________________
_______________________________________________________________________________
Curso Técnico de Eletrônica
MARGEM DE FORMATOS
Fig. 32 – Dobramento de formatos
Fig. 33 – Margens de formatos
desenho técnico – pág. 31
_______________________________________________________________________________
_______________________________________________________________________________
Curso Técnico de Eletrônica
LEGENDA
A legenda deve ficar no canto inferior direito dos formatos, A3, A2, A1 e A0, ou ao longo
da largura da folha de desenho, no formato A4.
Fig. 34 – legenda de formatos
Fig. 35 – Dimensões de formatos
desenho técnico – pág. 32
_______________________________________________________________________________
_______________________________________________________________________________
Curso Técnico de Eletrônica
3. Caligrafia Técnica
Uma caligrafia simples, perfeitamente legível e facilmente desenhável, constitui uma das
mais importantes condições dos desenhos técnicos.
Em desenho técnico, usamos uma caligrafia obedecendo às normas e não à caligrafia
comum. Vejamos a diferença.
As letras e algarismos podem ser verticais ou inclinados para a direita, sendo usados, de
preferência, estes últimos. Devem ser semelhantes aos dos tipos representados abaixo.
ABCDEFGHIJKLMNOPQRSTUVWXYZ
abcdefghijklmnopqrstuvwxyz
0123456789
ABCDEFGHIJKLMNOPQRSTUVWXYZ
abcdefghijklmnopqrstuvwxyz
0123456789
Fig. 36 – Escrita à mão livre
desenho técnico – pág. 33
_______________________________________________________________________________
_______________________________________________________________________________
Curso Técnico de Eletrônica
As figuras abaixo mostram a posição da mão e a maneira de pegar e deslocar o lápis,
fatores importantes para a obtenção de uma boa caligrafia.
Fig. 37a – Escrita à mão livre – posição da mão
desenho técnico – pág. 34
_______________________________________________________________________________
_______________________________________________________________________________
Curso Técnico de Eletrônica
Exercícios
1. Escreva, de acordo com os modelos, o que se pede abaixo:
Efetue as operações abaixo:
Fig. 37b – Exercício de caligrafia
Fig. 37c – Exercício de caligrafia
desenho técnico – pág. 35
_______________________________________________________________________________
_______________________________________________________________________________
Curso Técnico de Eletrônica
3. Repita as frases abaixo, de acordo com o modelo inicial:
O Desenho Técnico é utilizado pelas indústrias como linguagem técnica gráfica universal em que
se expressam e registram idéias e dados para a construção de máquinas, móveis e estruturas.
O conhecimento de desenho Técnico é indispensável a todos aqueles que necessitam executar
tarefas, quer sejam de ajustagem, tornearia, marcenaria, eletricidade, etc.
Fig. 37e – Exercício de caligrafia
Fig. 37d – Exercício de caligrafia
desenho técnico – pág. 36
_______________________________________________________________________________
_______________________________________________________________________________
Curso Técnico de Eletrônica
Fig. 38 – Letra inclinada - Itálico
desenho técnico – pág. 37
_______________________________________________________________________________
_______________________________________________________________________________
Curso Técnico de Eletrônica
4. Linhas Convencionais
Ao analisarmos um desenho, notamos que ele apresenta linhas de tipos e espessuras
diferentes. O conhecimento destas linhas e indispensável.para a interpretação dos
desenhos. Quanto à espessura, as linhas devem ser:
• Grossas
• Médias
• Finas
A espessura da linha média deve ser a metade da linha grossa e a espessura da linha fina,
metade da linha média.
Linhas para arestas e contornos visíveis são de espessura grossa
Linhas para arestas e contornos não visíveis são de espessura média e tracejada.
Fig. 39 – Linhas grossas e de traço contínuo
Fig. 40 – Linhas grossas tracejadas
desenho técnico – pág. 38
_______________________________________________________________________________
_______________________________________________________________________________
Curso Técnico de Eletrônica
Linhas de centro e eixo de simetria são de espessuras finas e formadas por traços e
pontos.
Linhas de Cota
Elas são de espessura fina e de traço contínuo, sendo limitadas por setas nas extremidades.
Linhas de Chamada ou Extensão
São de espessura fina e traço contínuo. Não devem tocar o contorno do desenho e
prolongam-se além da última linha de cota que limitam.
Fig. 41 – Linhas finas traço-ponto
Fig. 42 – Linhas de Cota
Fig. 43 – Linhas de Chamada ou Extensão
desenho técnico – pág. 39
_______________________________________________________________________________
_______________________________________________________________________________
Curso Técnico de Eletrônica
Linhas de Corte
São de espessura grossa, formada por traços e pontos. Servem para indicar cortes e seções.
Linhas para Hachuras
Elas são de espessura fina, traços contínuos ou tracejados, geralmente inclinados a 45º e
mostram as partes cortadas da peça. Servem também para indicar o material de que a peça
é feita, de acordo com as convenções recomendadas pela ABNT.
Linhas de rupturas
Para rupturas curtas
Elas são de espessura média, traço contínuo e sinuoso e servem para indicar pequenas
rupturas e cortes parciais.
Fig. 44 – Linhas de Corte
Fig. 45 – Linhas para Hachuras
desenho técnico – pág. 40
_______________________________________________________________________________
_______________________________________________________________________________
Curso Técnico de Eletrônica
Para rupturas longas
Elas são de espessura fina, traço contínuo e com zigue-zague, conforme figuras abaixo.
Linhas para representações simplificadas
Elas são de espessura média, traço contínuo e servem para indicar o fundo de filetes de
roscas e de dentes de engrenagens.
Fig. 46 – Linhas para Rupturas Curtas
Fig. 47 – Linhas para Rupturas Longas
Fig. 48 – Linhas para Representações Simplificadas
desenho técnico – pág. 41
_______________________________________________________________________________
_______________________________________________________________________________
Curso Técnico de Eletrônica
Exercícios
1. Trace à mão livre, nos espaços correspondentes do quadro abaixo, os tipos das linhas
utilizadas para cada caso.
TIPOS EMPREGO
1. Linhas para arestas e contornos visíveis
GROSSAS
2. Linha de corte
3. Linhas para arestas e contornos não
visíveis
MÉDIAS
4. Linhas de rupturas curtas
5. Linhas de cota
Linhas para hachuras
Linhas de chamada ou extensão
6. Linhas de centro ou eixo de simetria
FINAS
7. Linhas de rupturas longas
Fig. 49 – Exercícios sobre linhas
2. Numere nos círculos do desenho os tipos de linhas, de acordo com o quadro acima
Fig. 50 – Exercícios sobre linhas
desenho técnico – pág. 42
_______________________________________________________________________________
_______________________________________________________________________________
Curso Técnico de Eletrônica
5. Projeções Ortogonais
Uma peça que estamos observando ou mesmo imaginando, pode ser desenhada
(representada) num plano. A essa representação gráfica se dá o nome de "projeção".
O plano e denominado "plano de projeção" e a representação da peça recebe, nele, o nome
de projeção.
Podemos obter as projeções através de observações feitas em posições determinadas.
Assim teremos várias "vistas" da peça. Tomemos por exemplo uma caixa de fósforos:
Fig. 51 – Plano de projeção
Fig. 52 – Plano de projeção de uma caixa de fósforos
desenho técnico – pág. 43
_______________________________________________________________________________
_______________________________________________________________________________
Curso Técnico de Eletrônica
Para representar a caixa vista de frente, consideramos um plano vertical e vamos
representar nele esta vista.
A vista .de frente é, por isso, também denominada projeção vertical e/ou elevação.
Reparemos, na figura abaixo, as projeções verticais ou elevações das peças. Elas são as
vistas de frente das peças para o observador na posição indicada.
Voltemos ao exemplo da caixa de fósforos.
O observador quer representar a caixa, olhando-a por cima.
Fig. 53 – Projeções verticais ou elevações de peças
Fig. 54 – Projeção Horizontal Vista de Cima ou planta
desenho técnico – pág. 44
_______________________________________________________________________________
_______________________________________________________________________________
Curso Técnico de Eletrônica
Então usará um plano, que denominaremos de plano horizontal, e a projeção que
representa esta "vista de cima" será denominada projeção horizontal vista de cima ou
planta.
A figura abaixo representa a projeção horizontal, vista de cima ou planta das peças, para o
observador na posição indicada.
O observador poderá representar a caixa, olhando-a de lado. Teremos uma vista lateral, e a
projeção representará uma vista lateral que pode ser da direita ou da esquerda.
Fig. 55 – Projeção Horizontal Vista de Cima ou planta
Fig. 56 – Vista Lateral
desenho técnico – pág. 45
_______________________________________________________________________________
_______________________________________________________________________________
Curso Técnico de Eletrônica
Reparemos que uma peça pode ter, pelo que foi esclarecido, até seis vistas; entretanto, uma
peça que estamos vendo ou imaginando. deve ser representada por um numero de vistas
que nos de a idéia completa de peça, um numero de vistas essenciais para representá-la a
fim de que possamos entender qual é a forma e quais as dimensões da peça. Estas vistas
são chamadas de "vistas principais".
Ao selecionar a posição da peça da qual se vai fazer a projeção, escol para a vertical,
aquela vista que mais caracteriza ou individualiza a peça; por isso, é comum também
chamar a projeção vertical (elevação) de vista principal.
As três vistas (elevação, planta e vista lateral esquerda) dispostas em posições
normalizadas pela ABNT nos dão as suas projeções.
A vista de frente (elevação) e a vista de cima (planta) alinham-se verticalmente.
A vista de frente (elevação) e a vista de lado (vista lateral esquerda) alinham-se
horizontalmente.
Fig. 57 – Vista de Frente – Vista de Cima
Fig. 58 – Vista de Frente – Vista de Cima
desenho técnico – pág. 46
_______________________________________________________________________________
_______________________________________________________________________________
Curso Técnico de Eletrônica
Finalmente, temos a caixa de fósforos desenhada em três projeções.
Fig. 59 – Vista de Frente – Vista de Cima – Vista de Lado
desenho técnico – pág. 47
_______________________________________________________________________________
_______________________________________________________________________________
Curso Técnico de Eletrônica
Exercícios
RESPONDA:
I. Quais as letras e números que indicam a vista de frente?
2. Que letra na vista lateral esquerda, representa o número 2, da vista de frente?
3. Quais são as letras e números que indicam a vista de cima?
4. Que número na vista de cima, representa a letra F, da vista de frente?
5. Que letra na vista lateral esquerda, representa o número 5, da vista de cima?
6. Que número na vista de frente, representa a letra R, da vista lateral esquerda?
Fig. 60 – Exercícios - Vista de Frente – Vista de Cima – Vista de Lado
desenho técnico – pág. 48
_______________________________________________________________________________
_______________________________________________________________________________
Curso Técnico de Eletrônica
Por este processo podemos desenhar qualquer peça.
Na vista lateral esquerda das projeções das peças abaixo, existem linhas tracejadas. Elas
representam as arestas não visíveis.
Fig. 61 – Exemplos – Três Vistas
Fig. 62 – Exemplos – Linhas tracejadas representando arestas não visíveis
desenho técnico – pág. 49
_______________________________________________________________________________
_______________________________________________________________________________
Curso Técnico de Eletrônica
Nas projeções abaixo, aparecem linhas de centro.
Nas projeções abaixo, foram empregados eixos de simetria.
Fig. 63 – Exemplos – Linhas de Centro
Fig. 64 – Exemplos – Eixos de Simetria
desenho técnico – pág. 50
_______________________________________________________________________________
_______________________________________________________________________________
Curso Técnico de Eletrônica
Exercícios
7. Complete, desenhando à mão livre, as projeções das peças apresentadas.
Fig. 65 – Exercícios de Projeções Ortogonais
desenho técnico – pág. 51
_______________________________________________________________________________
_______________________________________________________________________________
Curso Técnico de Eletrônica
8. Desenhe à mão livre, as plantas e vistas laterais esquerdas das peças apresentadas.
Fig. 66 – Exercícios de Projeções Ortogonais
desenho técnico – pág. 52
_______________________________________________________________________________
_______________________________________________________________________________
Curso Técnico de Eletrônica
As projeções desenhadas nas folhas anteriores apresentaram a vista lateral esquerda,
representando o que se vê olhando a peça pelo lado esquerdo, apesar de sua projeção estar
à direita da elevação.
Nos casos em que o maior número de detalhes estiver colocado no lado direito da peça,
usamos a vista lateral direita, projetando-a ã esquerda da elevação, conforme exemplos
abaixo.
Fig. 67 – Exercícios de Projeções Ortogonais
desenho técnico – pág. 53
_______________________________________________________________________________
_______________________________________________________________________________
Curso Técnico de Eletrônica
9. Identifique e numere as projeções correspondentes a cada peça representada em
perspectiva.
Fig. 68 – Exercícios de Projeções Ortogonais
desenho técnico – pág. 54
_______________________________________________________________________________
_______________________________________________________________________________
Curso Técnico de Eletrônica
Quando representamos uma peça pelas suas projeções, usamos as vistas que melhor
identificam suas formas e dimensões, Podemos usar três ou mais vistas, como também
podemos usar duas vistas e, em alguns casos, ate uma única vista.
Nos exemplos abaixo estão representadas peças com duas vistas, onde continuará havendo
uma vista principal, a vista de frente, sendo escolhida como segunda vista aquela que
melhor complete a representação da peça.
Nos exemplos abaixo estão representadas peças por uma única vista, Neste tipo de
projeção ê indispensável o uso de símbolos:
Fig. 69 – Uso de duas vistas
Fig. 70 – Uso de uma única vista
desenho técnico – pág. 55
_______________________________________________________________________________
_______________________________________________________________________________
Curso Técnico de Eletrônica
6. Dimensionamento e simbologia
6.1 Representação das Cotas
Para a execução de uma peça, torna-se necessário que se coloque no desenho, alem das
projeções que nos dão idéia da forma da peça, também as suas medidas e outras
informações complementares. A isto chamamos Dimensionamento ou cotagem.
A cotagem dos desenhos tem por objetivos principais determinar o tamanho e localizar
exatamente os detalhes da peça. Por exemplo, para a execução da peça abaixo
necessitamos saber as suas dimensões e a exata localização do furo.
A Anotação - "esp. 8" - Refere-se, à espessura da peça.
Para a cotagem de um desenho são necessários três elementos:
• Linhas de Cota
• Linhas de Extensão
• Valor Numérico da Cota
Fig. 71 – Representação de Cotas
desenho técnico – pág. 56
_______________________________________________________________________________
_______________________________________________________________________________
Curso Técnico de Eletrônica
6.2 Regras de Cotagem
Como vemos na figura acima, as linhas de Cota são de espessura fina, traço continuo,
limitadas por setas nas extremidades. As linhas de extensão são de espessura fina, traço
contínuo, não devem tocar o contorno do desenho ria peça e prolongam-se um pouco além
da última linha de cota que abrangem.
• O número que exprime o valor numérico da cota pode ser escrito.
• Acima da linha de cota, eqüidistante dos extremos.
• Em intervalo aberto dela interrupção da linha de cota.
Fig. 72 – Elementos de Cotagem de Desenho
Fig. 73 – Regras de Cotagem de Desenho
desenho técnico – pág. 57
_______________________________________________________________________________
_______________________________________________________________________________
Curso Técnico de Eletrônica
No mesmo desenho devemos empregar apenas uma destas duas modalidades. O valor
numérico colocado acima da linha de cota é mais fácil e evita a possibilidade de erros.
Em desenho técnico, normalmente, a unidade de medida é o milímetro, sendo dispensada a
colocação do símbolo junto ao valor numérico da cota.
Se houver o emprego de outra unidade, coloca-se o respectivo símbolo ao lado do valor
numérico, conforme figura abaixo:
As cotas devem ser colocadas de modo que o desenho seja lido da esquerda para a direita e
de baixo para cima, paralelamente à dimensão cotada.
Fig. 74 – Representação de Cotagem de seções quadradas e circulares
Fig. 75 – Posição correta dos números de cota
desenho técnico – pág. 58
_______________________________________________________________________________
_______________________________________________________________________________
Curso Técnico de Eletrônica
Cada cota deve ser indicada na vista que mais claramente representa a forma do elemento
cotado. Deve-se evitar a repetição de cotas.
As cotas podem ser colocadas dentro ou fora dos elementos que representam, atendendo a
melhores requisitos de clareza e facilidade de execução.
Nas transferências de cotas para locais mais convenientes, devemos evitar o cruzamento
das linhas de extensão com linhas de cota.
As linhas de extensão são traçadas perperdicularmente à dimensão cotada ou, em caso de
necessidade, obliquamente, porém paralelas entre si.
Fig. 76 – Representação de Cotas na melhor vista
desenho técnico – pág. 59
_______________________________________________________________________________
_______________________________________________________________________________
Curso Técnico de Eletrônica
Fig. 77 – Representação do número de Cotagem dentro/fora do elemento
desenho técnico – pág. 60
_______________________________________________________________________________
_______________________________________________________________________________
Curso Técnico de Eletrônica
Exercícios
1. Localize as cotas necessárias para a execução das peças abaixo representadas. Não
coloque o valor numérico das cotas. Trace à mão livre, apenas as linhas de cota e de
extensão.
Fig. 78 – Exercícios - Representação da Cotagem
desenho técnico – pág. 61
_______________________________________________________________________________
_______________________________________________________________________________
Curso Técnico de Eletrônica
2. Localize as cotas necessárias para a execução das peças apresentadas. Não coloque o
valor numérico das cotas. Trace à mão livre, apenas as linhas de cota e de extensão.
Fig. 79 – Exercícios - Representação da Cotagem
desenho técnico – pág. 62
_______________________________________________________________________________
_______________________________________________________________________________
Curso Técnico de Eletrônica
6.3 Simbologia e Convenções
A ABNT (ASSOCIAÇAO BRASILEIRA DE NORMAS TÉCNICAS), em suas normas
NB-8 e NB-13, recomenda a utilização dos símbolos abaixo, que devem ser colocados
sempre antes dos valores numéricos das cotas.
φ Indicativo de Diâmetro
Indicativo de quadrado
R Indicativo de Raio r
Quando, na vista cotada, for evidente que se trata de diâmetro ou quadrado, os respectivos
símbolos podem ser dispensados. Exemplos:
Fig. 80 – Simbologia e Convenções
Fig. 81 – Dispensa de simbologia para diâmetro ou quadrado
desenho técnico – pág. 63
_______________________________________________________________________________
_______________________________________________________________________________
Curso Técnico de Eletrônica
Símbolos em materiais perfilados
Os símbolos abaixo devem ser colocados sempre antes da designação da bitola do material.
Fig. 82 – Simbologia em Materiais Perfilados
desenho técnico – pág. 64
_______________________________________________________________________________
_______________________________________________________________________________
Curso Técnico de Eletrônica
7. Escalas
Os desenhos que utilizamos em oficinas, para orientar a construção de uma peça, nem
sempre podem ser executados cornos valores reais das medidas da peça. Por exemplo: é
impossível representar no desenho uma mesa de três metros de comprimento em seu
tamanho real, como também difícil ou quase impossível representar em seu tamanho
natural uma peça para relógio, com três milímetros de diâmetro.
O recurso será, então, reduzir ou ampliar o desenho, conservando a proporção da peça a ser
executada.
Em todos estes casos, isto é, desenhando na mesma medida, reduzindo ou ampliando,
estaremos empregando escalas. Escala é, portanto, a relação entre as medidas do desenho e
a da peça.
ESCALAS USUAIS
Quando o desenho for do mesmo tamanho da peça ou quando tiver as mesmas dimensões
indicadas nas cotas, teremos a escala natural
7.1 Escala Natural
A escala natural é indicada da seguinte forma:
Escala 1:1, que se lê "Escala um por um".
desenho técnico – pág. 65
_______________________________________________________________________________
_______________________________________________________________________________
Curso Técnico de Eletrônica
O exemplo abaixo mostra o desenho de um punção de bico com todas as indicações
necessárias ã sua execução na oficina. Note que, devido ao seu tamanho, foi possível
desenhar em escala natural.
7.2 Escala de Redução
Quando o desenho de uma peça for efetuado em tamanho menor do que o tamanho da
própria peça, estaremos usando escala de Redução. Note que, embora reduzindo o tamanho
do desenho, as cotas conservaram as medidas reais da peça.
A escala de redução é indicada da seguinte forma:
Escala 1:2, que se lê "Escala um por dois".
Neste exemplo, o desenho está duas vezes menor que os valores das cotas.
Fig. 83a – Escala Natural
desenho técnico – pág. 66
_______________________________________________________________________________
_______________________________________________________________________________
Curso Técnico de Eletrônica
7.3 Escala de Ampliação
As Escalas de redução recomendadas pela ABNT são as seguintes:
1 : 2 1 : 2,5 1 : 5 1 : 10 1 : 100
Quando o desenho de uma peça for efetuado no tamanho maior do que esta, estaremos
usando escala de ampliação. Note que as cotas conservaram, também, os valores reais da
peça.
As escalas de ampliações recomendadas pela ABNT são as seguintes:
2:1 5:1 10:1
Fig. 83b – Escala com Redução
Fig. 83c – Escala com Ampliação
desenho técnico – pág. 67
_______________________________________________________________________________
_______________________________________________________________________________
Curso Técnico de Eletrônica
A interpretação de uma escala em relação à razão numérica é feita da seguinte forma:
Usam-se dois números; o primeiro, refere-se ao desenho e o segundo, à peça. O exemplo
abaixo significa que 2 mm na peça corresponde a 1 mm no desenho.
A redução ou ampliação só terá efeito para o traçado do desenho, pois na cotagem
colocaremos as medidas reais da peça.
Em escalas as medidas angulares não sofrem redução ou ampliação como as lineares; por
exemplo, seja qual for a escala empregada, um ângulo de 60º será representado com o
mesmo valor.
Fig. 83d – Leitura de Escala
Fig. 83e – Ângulos em Desenhos
OBSERVAÇÕES:
1. A escala do desenho deve obrigatoriamente ser indicada na legenda.
2. Constando na mesma folha desenhos em escalas diferentes, estas devem ser
indicadas tanto na legenda como junto aos desenhos a que correspondem.
3. Sempre que possive1 devemos desenhar em escala natural.
desenho técnico – pág. 68
_______________________________________________________________________________
_______________________________________________________________________________
Curso Técnico de Eletrônica
Exercícios
1. Complete as lacunas:
Dimensão da peça Escala Dimensão do desenho
42 1:2
1:1 70
1:2 22
35 175
65 1:2,5
1:5 40
8 2:1
25,4 25,4
145 29
16 2:1
5:1 260
75 30
220 1:10
1:2,5 16
2:1 74
60 12
2,6 10:1
5:1 72
1,2 12
1:2,5 15
Fig. 84 – Exercícios de Escalas
desenho técnico – pág. 69
_______________________________________________________________________________
_______________________________________________________________________________
Curso Técnico de Eletrônica
2. Coloque valores numéricos nas linhas de cota, de acordo com a escala indicada:
Fig. 85 – Exercícios de Escalas
desenho técnico – pág. 70
_______________________________________________________________________________
_______________________________________________________________________________
Curso Técnico de Eletrônica
8
8.
. C
Co
or
rt
te
es
s e
e S
Se
eç
çõ
õe
es
s
8.1 Introdução
Os cortes são utilizados em desenhos de peças e conjuntos, para facilitar a interpretação de
detalhes internos que, através das vistas, sem o emprego do corte, seriam de difícil
interpretação. Vimos que as vistas principais apresentam detalhes internos, com linhas
tracejadas indicando os contornos e arestas não visíveis, como o exemplo abaixo.
Se empregarmos o corte, os detalhes internos passarão a ficar visíveis. Imaginemos que a
peça seja cortada no sentido longitudinal e a parte da frente, retirada; na projeção, teremos
a elevação em corte.
Fig. 86 – Cortes e Seções
Fig. 87 – Plano de Corte
desenho técnico – pág. 71
_______________________________________________________________________________
_______________________________________________________________________________
Curso Técnico de Eletrônica
OBSERVAÇÕES:
a) O corte é imaginário.
b) O sombreado, na projeção, corresponde à parte da peça que foi atingida pelo
corte.
c) A região não sombreada indica a não atingida.
Fig. 88 – Peça cortada
Fig. 89 – Vistas da Peça Cortada
desenho técnico – pág. 72
_______________________________________________________________________________
_______________________________________________________________________________
Curso Técnico de Eletrônica
Exercícios
1. Trace as linhas de corte, nas projeções abaixo, considerando os cortes efetuados.
Fig. 90 – Exercícios Cortes e Seções
desenho técnico – pág. 73
_______________________________________________________________________________
_______________________________________________________________________________
Curso Técnico de Eletrônica
8.2 Rupturas
Rupturas são representações convencionais utilizadas para o desenho de peças que, devido
ao seu comprimento, necessitam ser encurtadas para melhor aproveitamento de espaço no
desenho. De acordo com a sua forma. A linha de ruptura é de espessura média.
A representação de rupturas é empregada quando, na parte que se imagina retirada, não
houver detalhes que necessitem ser mostrados. O comprimento real da peça é dado pelo
valor numérico da cota.
Fig. 91 – Rupturas
Fig. 92 – Peça com Rupturas
desenho técnico – pág. 74
_______________________________________________________________________________
_______________________________________________________________________________
Curso Técnico de Eletrônica
9
9.
. P
Pe
er
rs
sp
pe
ec
ct
ti
iv
va
as
s I
Is
so
om
mé
ét
tr
ri
ic
ca
as
s
A perspectiva, por ser desenho ilustrativo, auxilia na interpretação de peças, embora, em
muitos casos, não possa mostrar todos os detalhes.
A perspectiva isométrica (medidas iguais) é uma das mais simples e eficientes. Parte de
três eixos a 120 graus (isométricos) sobre os quais marcam-se as medidas da peça. As
arestas paralelas da peça são traçadas na perspectiva isométrica por linhas também
paralelas.
Fig. 93 - Peça desenhada em perspectiva isométrica
desenho técnico – pág. 75
_______________________________________________________________________________
_______________________________________________________________________________
Curso Técnico de Eletrônica
Os quadros de 1 a 6 mostram a seqüência do traçado à mão livre da perspectiva isométrica.
Fig. 94 – Ângulos da Perspectiva Isométrica
Fig. 95 – Seqüência de Traçado da Perspectiva Isométrica
desenho técnico – pág. 76
_______________________________________________________________________________
_______________________________________________________________________________
Curso Técnico de Eletrônica
Os elementos cilíndricos e os arcos são traçados em perspectiva isométrica, conforme os
desenhos abaixo:
Fases do traçado à mão livre de elementos cilíndricos e arcos.
Fig. 96 – Seqüência de Traçado da Perspectiva Isométrica para Elementos Cilíndricos e Arcos
Fig. 97 – Fases do traçado à mão livre de elementos cilíndricos e arcos
desenho técnico – pág. 77
_______________________________________________________________________________
_______________________________________________________________________________
Curso Técnico de Eletrônica
1
10
0.
. T
Te
er
rc
ce
ei
ir
ro
o D
Di
ie
ed
dr
ro
o
No estudo e nos exercícios de projeção que vimos até agora, as vistas têm a seguinte
distribuição:
As projeções com esta disposição das vistas são chamadas "projeção no 1º diedro", sendo
esse sistema recomendado pela como norma para os desenhos efetuados no Brasil.
Este tipo de projeção é também usado na Alemanha e em toda a Europa. Nos Estados
Unidos e Canadá, entretanto, convencionou-se usar as projeções com disposição diferente
das vistas, sendo esse sistema chamado de projeção no 3º diedro. É importante o
conhecimento deste tipo de representação, visto existir no Brasil um grande numero de
indústrias de origem norte-americana e canadense.
Observa-se que a vista de cima fica acima da vista de frente, enquanto que as laterais
direita e esquerda ficam, respectivamente, à direita e à esquerda da vista de frente.
Fig. 98 – Distribuição das Vistas – projeção no 1ºDiedro
Fig. 99 – Distribuição das Vistas
desenho técnico – pág. 78
_______________________________________________________________________________
_______________________________________________________________________________
Curso Técnico de Eletrônica
Exercícios
1. As peças abaixo estão desenhadas no 3º diedro. Todas elas estão incompletas. Complete-
as, colocando as linhas faltantes.
Fig. 100 – Exercícios Terceiro Diedro
desenho técnico – pág. 79
_______________________________________________________________________________
_______________________________________________________________________________
Curso Técnico de Eletrônica
Referências Bibliográficas
Módulos de Desenho Técnico Mecânico do SENAI – Departamento Regional de
Minas Gerais.

Desenho tecnico

  • 1.
    desenho técnico _______________________________________________________________________________ _______________________________________________________________________________ Curso Técnicode Eletrônica Desenho Técnico Volume único Unidade Operacional - Senai “Alvimar Carneiro de Rezende” SENAI-CFP “Alvimar Carneiro de Rezende” Via Sócrates Marianni Bittencourt, 711 – CINCO CONTAGEM – MG – Cep. 32010-010 Tel. 31-3352-2384 – E-mail: cfp-acr@fiemg.com.br
  • 2.
    desenho técnico _______________________________________________________________________________ _______________________________________________________________________________ Curso Técnicode Eletrônica Presidente da FIEMG Robson Braga de Andrade Gestor do SENAI Petrônio Machado Zica Diretor Regional do SENAI e Superintendente de Conhecimento e Tecnologia Alexandre Magno Leão dos Santos Gerente de Educação e Tecnologia Edmar Fernando de Alcântara Elaboração Equipe Técnica Digitalizado e modificado por: Prof. Sérgio Goulart Alves Pereira Revisado por: Prof. Célio Batista de Souza Versão 4.0 – 1/2005 Unidade Operacional Centro de Formação profissional “Alvimar Carneiro de Rezende”
  • 3.
    desenho técnico _______________________________________________________________________________ _______________________________________________________________________________ Curso Técnicode Eletrônica Sumário 1. INTRODUÇÃO ____________________________________________________________ 6 2. MATERIAIS E INSTRUMENTOS _________________________________________________ 9 2.1 TIPOS DE INSTRUMENTOS ________________________________________________ 9 2.2 FORMATOS DE PAPEL ___________________________________________________ 23 3. CALIGRAFIA TÉCNICA ______________________________________________________ 28 4. LINHAS CONVENCIONAIS ____________________________________________________ 35 5. PROJEÇÕES ORTOGONAIS ___________________________________________________ 41 6. DIMENSIONAMENTO E SIMBOLOGIA _____________________________________________ 54 6.1 REPRESENTAÇÃO DAS COTAS _____________________________________________ 54 6.2 REGRAS DE COTAGEM __________________________________________________ 55 6.3 SÍMBOLOS E CONVENÇÕES _______________________________________________ 60 7. ESCALAS _______________________________________________________________ 64 7.1 ESCALA NATURAL _____________________________________________________ 64 7.2 ESCALA DE REDUÇÃO __________________________________________________ 64 7.3 ESCALAS DE AMPLIAÇÃO ________________________________________________ 65 8. CORTES E SEÇÕES ________________________________________________________ 69 8.1 INTRODUÇÃO _________________________________________________________ 69 8.2 RUPTURAS___________________________________________________________ 72 9. PERSPECTIVA ISOMÉTRICA __________________________________________________ 73 10. PROJEÇÕES ORTOGONAIS 3ºDIEDRO __________________________________________ 76 REFERÊNCIAS BIBLIOGRÁFICAS _________________________________________________ 78
  • 4.
    desenho técnico _______________________________________________________________________________ _______________________________________________________________________________ Curso Técnicode Eletrônica Lista de figuras Fig. 01 - Descrição verbal _____________________________________________________ 7 Fig. 02 – Fotografia ___________________________________________________________ 7 Fig. 03 – Modelo _____________________________________________________________ 8 Fig. 04 - Desenho técnico _______________________________________________________ 8 Fig. 05 - Tabela de seções de lápis ________________________________________________ 11 Fig. 06 – Lápis _______________________________________________________________ 11 Fig. 07 - Lixar lápis ___________________________________________________________ 12 Fig. 08 - Traçado do lápis _______________________________________________________ 12 Fig. 09 - Chanframento da borracha _______________________________________________ 13 Fig. 10 - Exercícios das linhas ___________________________________________________ 14 Fig. 11 - Régua milimetrada _____________________________________________________ 15 Fig. 12 - Graduações da régua milimetrada _________________________________________ 15 Fig. 13 – Fazendo traços com a régua milimetrada ___________________________________ 16 Fig. 14 – Régua T _____________________________________________________________ 16 Fig. 15 – Uso correto da Régua T _________________________________________________ 16 Fig. 16 – Exercícios leitura de medida – régua milimetrada ____________________________ 18 Fig. 17 – Linhas para medir com a régua milimetrada _________________________________ 18 Fig. 18 – Esquadros ___________________________________________________________ 19 Fig. 19 – Traços verticais com Esquadros __________________________________________ 19 Fig. 20 – Movimentação dos Esquadros sobre a régua T _______________________________ 20 Fig. 21 – Exercícios – Linhas verticais ____________________________________________ 21 Fig. 22 – Exercícios – Linhas inclinadas ___________________________________________ 21 Fig. 23 – Exercícios – Linhas inclinadas 30º e 60º ____________________________________ 21 Fig. 24 – Tipos de compassos ____________________________________________________ 22 Fig. 25 – Ponta de grafite do compasso ____________________________________________ 22 Fig. 26 – Etapas de uso correto do compasso ________________________________________ 23 Fig. 27 – Exercícios com compasso – círculos _______________________________________ 24 Fig. 28 – Exercícios com compasso – semicírculos ___________________________________ 25 Fig. 29 – Formato A4 - a área de 1 m2 _____________________________________________ 26 Fig. 30 – Formato A4 e seus derivados ____________________________________________ 27 Fig. 31 – Tabela de dimensões de formatos _________________________________________ 28 Fig. 32 – Dobramento de formatos ________________________________________________ 29 Fig. 33 – Margens de formatos ___________________________________________________ 29 Fig. 34 – Legenda de formatos ___________________________________________________ 30 Fig. 35 – Dimensões de formatos _________________________________________________ 30 Fig. 36 – Escrita à mão livre _____________________________________________________ 31 Fig. 37a – Escrita à mão livre – posição da mão _____________________________________ 32 Fig. 37b – Exercício de caligrafia _________________________________________________ 33 Fig. 37c – Exercício de caligrafia _________________________________________________ 33 Fig. 37d – Exercício de caligrafia _________________________________________________ 34 Fig. 38 – Escrita letra em itálico __________________________________________________ 35 Fig. 39 – Linhas grossas e de traço contínuo ________________________________________ 36 Fig. 40 – Linhas grossas tracejadas _______________________________________________ 36 Fig. 41 – Linhas finas traço-ponto ________________________________________________ 37 Fig. 42 – Linhas de Cota ________________________________________________________ 37 Fig. 43 – Linhas de Chamada ou Extensão _________________________________________ 37 Fig. 44 – Linhas de Corte _______________________________________________________ 38 Fig. 45 – Linhas para Hachuras __________________________________________________ 38 Fig. 46 – Linhas para Rupturas Curtas _____________________________________________ 39 Fig. 47 – Linhas para Rupturas Longas ____________________________________________ 39 Fig. 48 – Linhas para Representações Simplificadas __________________________________ 39 Fig. 49 – Exercícios sobre linhas _________________________________________________ 40 Fig. 50 – Exercícios sobre linhas _________________________________________________ 40 Fig. 51 – Plano de projeção _____________________________________________________ 41 Fig. 52 – Plano de projeção de uma caixa de fósforos ________________________________ 41 Fig. 53 – Projeções verticais ou elevações de peça ___________________________________ 42 Fig. 54 – Projeção Horizontal Vista de Cima ou planta _______________________________ 42
  • 5.
    desenho técnico _______________________________________________________________________________ _______________________________________________________________________________ Curso Técnicode Eletrônica Fig. 55 – Projeção Horizontal Vista de Cima ou planta _______________________________ 43 Fig. 56 – Vista Lateral _________________________________________________________ 43 Fig. 57 – Vista de Frente – Vista de Cima _________________________________________ 44 Fig. 58 – Vista de Frente – Vista de Lado __________________________________________ 44 Fig. 59 – Vista de Frente – Vista de Cima – Vista de Lado ____________________________ 45 Fig. 60 – Exercícios - Vista de Frente – Vista de Cima – Vista de Lado __________________ 46 Fig. 61 – Exemplos – Três Vistas ________________________________________________ 47 Fig. 62 – Exemplos – Linhas tracejadas representando arestas não visíveis ________________ 47 Fig. 63 – Exemplos – Linhas de Centro ___________________________________________ 48 Fig. 64 – Exemplos – Eixos de Simetria ___________________________________________ 48 Fig. 65 – Exercícios – Projeções Ortogonais ________________________________________ 49 Fig. 66 – Exercícios – Projeções Ortogonais ________________________________________ 50 Fig. 67 – Exercícios de Projeções Ortogonais _______________________________________ 51 Fig. 68 – Exercícios de Projeções Ortogonais _______________________________________ 52 Fig. 69 – Uso de duas vistas ____________________________________________________ 53 Fig. 70 – Uso de uma única vista ________________________________________________ 53 Fig. 71 – Representação de Cotas _________________________________________________ 54 Fig. 72 – Elementos de Cotagem de Desenho _______________________________________ 55 Fig. 73 – Regras de Cotagem de Desenho __________________________________________ 55 Fig. 74 – Representação de Cotagem de seções quadradas e circulares ___________________ 56 Fig. 75 – Posição correta dos números de cota ______________________________________ 56 Fig. 76 – Representação de Cotas na melhor vista ____________________________________ 57 Fig. 77 – Representação do número de Cotagem dentro/fora do elemento _________________ 58 Fig. 78 – Exercícios - Representação da Cotagem ____________________________________ 59 Fig. 79 – Exercícios - Representação da Cotagem ____________________________________ 60 Fig. 80 – Simbologia e Convenções _______________________________________________ 61 Fig. 81 – Dispensa de simbologia para diâmetro ou quadrado ___________________________ 61 Fig. 82 – Simbologia em Materiais Perfilados _______________________________________ 62 Fig. 83a – Escala Natural _______________________________________________________ 64 Fig. 83b – Escala com Redução __________________________________________________ 65 Fig. 83c – Escala com Ampliação ________________________________________________ 65 Fig. 83d – Leitura de Escala _____________________________________________________ 66 Fig. 83e – Ângulos em Desenhos _________________________________________________ 66 Fig. 84 – Exercícios de Escalas __________________________________________________ 67 Fig. 85 – Exercícios de Escalas __________________________________________________ 68 Fig. 86 – Cortes e Seções _______________________________________________________ 69 Fig. 87 – Plano de Corte ________________________________________________________ 69 Fig. 88 – Peça cortada _________________________________________________________ 70 Fig. 89 – Vistas da Peça Cortada _________________________________________________ 70 Fig. 90 – Exercícios Cortes e Seções ______________________________________________ 71 Fig. 91 – Rupturas ____________________________________________________________ 72 Fig. 92 – Peça com Rupturas ____________________________________________________ 72 Fig. 93 - Peça desenhada em perspectiva isométrica __________________________________ 73 Fig. 94 – Ângulos da Perspectiva Isométrica ________________________________________ 74 Fig. 95 – Seqüência de Traçado da Perspectiva Isométrica _____________________________ 74 Fig. 96 – Seqüência de Traçado da Perspectiva Isométrica para Elementos Cilíndricos e Arcos 75 Fig. 97 – Fases do traçado à mão livre de elementos cilíndricos e arcos ___________________ 75 Fig. 98 – Distribuição das Vistas _________________________________________________ 76 Fig. 99 – Distribuição das Vistas _________________________________________________ 76 Fig. 100 – Exercícios Terceiro Diedro _____________________________________________ 77
  • 6.
    desenho técnico –pág. 6 _______________________________________________________________________________ _______________________________________________________________________________ Curso Técnico de Eletrônica Apresentação “Muda a forma de trabalhar, agir, sentir, pensar na chamada sociedade do conhecimento”. Peter Drucker O ingresso na sociedade da informação exige mudanças profundas em todos os perfis profissionais, especialmente naqueles diretamente envolvidos na produção, coleta, disseminação e uso da informação. O SENAI, maior rede privada de educação profissional do país, sabe disso, e consciente do seu papel formativo, educa o trabalhador sob a égide do conceito da competência: “formar o profissional com responsabilidade no processo produtivo, com iniciativa na resolução de problemas, com conhecimentos técnicos aprofundados, flexibilidade e criatividade, empreendedorismo e consciência da necessidade de educação continuada.”. Vivemos numa sociedade da informação. O conhecimento, na sua área tecnológica, amplia-se e se multiplica a cada dia. Uma constante atualização se faz necessária. Para o SENAI, cuidar do seu acervo bibliográfico, da sua infovia, da conexão de suas escolas à rede mundial de informações -internet- é tão importante quanto zelar pela produção de material didático. Isto porque, nos embates diários, instrutores e alunos, nas diversas oficinas e laboratórios do SENAI, fazem com que as informações, contidas nos materiais didáticos, tomem sentido e se concretizem em múltiplos conhecimentos. O SENAI deseja, por meio dos diversos materiais didáticos, aguçar a sua curiosidade, responder às suas demandas de informações e construir links entre os diversos conhecimentos, tão importantes para sua formação continuada! Gerência de Educação e Tecnologia
  • 7.
    desenho técnico –pág. 7 _______________________________________________________________________________ _______________________________________________________________________________ Curso Técnico de Eletrônica 1. Introdução Quando vamos executar uma determinada peça na oficina de nossa escola ou na indústria, necessitamos receber todas informações e dados sobre a mesma. Estas informações poderiam ser apresentadas de várias formas, tais como: 1. Descrição verbal da peça. 2. Fotografia da peça. 3. Modelo da peça. 4. Desenho técnico da peça. Se analisarmos cada uma destas formas, veremos que nem todas proporcionam as informações indispensáveis para a execução da peça, senão, vejamos: Descrição Verbal - Não é o bastante para transmitir as idéias de forma e dimensões de uma peça, mesmo que ela não seja muito comp1icada. Se experimentarmos descrever, usando somente o recurso da palavra, um objeto, de maneira que outra pessoa o execute, concluiremos que isso é praticamente possível. Fig. 1. - Descrição verbal A Fotografia - Transmite relativamente bem a idéia da parte exterior da peça, mas não mostra seus detalhes internos e nem suas dimensões. Logo, a fotografia também não resolve o nosso problema.
  • 8.
    desenho técnico –pág. 8 _______________________________________________________________________________ _______________________________________________________________________________ Curso Técnico de Eletrônica Fig. 2. - Fotografia O Modelo - Resolve, até certo ponto, alguns problemas. Nem todos, porém. Por exemplo, se tivéssemos que transportar uma peça de grande tamanho, para reproduzi-1a pelo modelo... Além disso, a peça o pode estar sendo "projetada", não existindo ainda um modelo da mesma. Fig. 3. - Modelo Desenho técnico - Pode transmitir, com clareza, precisão e de maneira simples, todas as idéias de forma e dimensões de uma peça. Além disso, há uma série de outras informações necessárias que somente o desenho pode dar, tais como:. O material de que é feita a peça, os acabamentos de sua superfície, as tolerâncias de suas medidas etc. Fig. 4. - Desenho técnico Portanto, o conhecimento de Desenho Técnico é indispensável a todos aqueles que necessitam executar tarefas que sejam de ajustagem, tornearia, marcenaria, eletricidade etc.
  • 9.
    desenho técnico –pág. 9 _______________________________________________________________________________ _______________________________________________________________________________ Curso Técnico de Eletrônica O Desenho Técnico é usado na indústria pelos engenheiros, projetistas, desenhistas, mestres e operários qualificados, como uma linguagem técnica universal, pela qual se expressam e registram idéias e dados para a construção de móveis, máquinas e estruturas. Sendo uma linguagem gráfica universal, o Desenho técnico possui normas específicas para o seu traçado e interpretação. Estas normas são elaboradas por entidades especia1izadas que padroniza e normaliza o seu emprego. No Brasil, a ABNT - Associação Brasileira de Normas Técnicas - padronizou as normas NB-8, NB-13 e outras, que fixam as condições gerais que devem ser observadas na execução dos desenhos técnicos e representações convencionais. Para que o emprego do desenho técnico se torne fácil e preciso, recorre-se ao uso de instrumentos apropriados, chamando-se, neste caso, "Desenho com instrumentos”. Quando executado à mão, sem o auxílio de instrumentos, denomina-se “Desenho à Mão Livre” ou “Esboço”. O nosso objetivo é estudar e exercitar a linguagem universal do desenho técnico, a fim de expressá-la e escrevê-la com clareza, bem como interpreta-la quando escrita por outrem. O objetivo do estudo de desenho não é formação de desenhistas, mas sim a preparação daqueles que irão orientar-se por meio do desenho, na escola e na vida profissional, dando- lhes condições de: Ler e Interpretar, com segurança, desenhos técnicos de sua especialidade, de acordo com as normas da ABNT; Executar traçados à mão livre e com instrumentos básicos, como forma de expressão de sua linguagem técnica.
  • 10.
    desenho técnico –pág. 10 _______________________________________________________________________________ _______________________________________________________________________________ Curso Técnico de Eletrônica Exercícios 1. Para executarmos uma peça, o modo que transmite, com clareza e precisão, todas as idéias de forma e dimensões, é: a) Fotografia da peça. b) Desenho da peça. c) Descrição verbal da peça. d) Modelo da peça. 2. O ensino do Desenho Técnico, no curso que você está fazendo, visa a: a) Formá-lo desenhista. b) Dar-lhe disciplina intelectual. c) Prepará-lo e orientá-lo para, por meio dele, executar peças em oficina. d) Dar-lhe habilidade manual. 3. O Desenho pode dar as seguintes informações, além das de forma e dimensões: a) O material da peça e o acabamento de sua superfície. b) O nome do operário que a executará. c) Somente as informações de forma e dimensões. Justifique:
  • 11.
    desenho técnico –pág. 11 _______________________________________________________________________________ _______________________________________________________________________________ Curso Técnico de Eletrônica 2. Introdução 2.1 TIPOS DE INSTRUMENTOS 2.1.1 LÁPIS O lápis, instrumento básico para o traçado de desenhos. Pode ser de seção redonda ou hexagonal. Classifica-se em função da dureza de sua grafita. A dureza da grafita é indicada por números, letras ou ambos. Os lápis de seções hexagonais, mais adequados para desenho, são classificados de acordo com as letras B. F e H. Os lápis de seção redonda, comumente encontrados no comércio para uso geral são classificados pelos números 1. 2 e 3, correspondentes às hexagonais, de acordo com a tabela abaixo. Ao fazer a ponta no lápis, deve-se ter o cuidado de fazê-la na extremidade oposta àquela onde se encontra indicada a dureza da grafite. Caso contrário, o reconhecimento do lápis de acordo com sua dureza será bem difícil. Fig. 5 - Tabela de seções de lápis Fig. 6 - Lápis
  • 12.
    desenho técnico –pág. 12 _______________________________________________________________________________ _______________________________________________________________________________ Curso Técnico de Eletrônica Para o afinamento da grafite é interessante ter uma tira de1ixa fina colada em um pedaço de madeira. A utilização do lápis será feita da seguinte maneira: Quando quisermos traçar 1inhas grossas e médias, usaremos o 1ápis HB ou nº 2, dando-se a pressão necessária para obter o tipo de linha desejado. As 1inhas finas devem ser traçadas com o lápis H, 2H ou nº 3. O lápis, durante o traçado, deve ser sempre puxado e nunca empurrado. Ao traçar uma linha com o auxilio de régua ou esquadro, deve-se manter o lá pis numa posição inclinada em toda a sua extensão. A ilustração abaixo mostra a maneira correta de segurar o lápis. Fig. 7 - Lixar lápis Fig. 8 – Traçado do lápis
  • 13.
    desenho técnico –pág. 13 _______________________________________________________________________________ _______________________________________________________________________________ Curso Técnico de Eletrônica 2.1.1 BORRACHA A borracha para apagar desenhos a 1ápis deve ser macia e flexível. Para facilitar o trabalho de apagar, em trechos pequenos, a borracha deve ser chanfrada numa das extremidades. Este chanfro é obtido raspando-a numa superfície áspera. Fig. 9 – Chanframento da borracha
  • 14.
    desenho técnico –pág. 14 _______________________________________________________________________________ _______________________________________________________________________________ Curso Técnico de Eletrônica E Ex xe er rc cí íc ci io os s Complete os exercícios abaixo, obedecendo, no traçados, a orientação dada pelas setas. Use o lápis nº 2 ou HB. Conserve o mesmo afastamento entre as linhas. Fig. 10 - Exercícios das linhas
  • 15.
    desenho técnico –pág. 15 _______________________________________________________________________________ _______________________________________________________________________________ Curso Técnico de Eletrônica 2.1.3 RÉGUAS Existem diversos tipos de réguas, sendo as mais empregadas: a régua graduada e a régua "T". A) Régua Graduada Ela consiste numa peça reta (plana), tendo graduações em ambas as arestas, para a marcação de medidas. Existem réguas graduadas em milímetros ou em polegadas e algumas possuem as duas graduações em arestas opostas. As réguas graduadas servem para tomar e aplicar medidas lineares, portanto, não devem ser utilizadas para auxiliar nos traçados de linhas. Geralmente a graduação impressa na régua, produz pequenas depressões; por isso, as linhas traçadas com tais réguas resultam em linhas irregulares. Fig. 11 – Régua milimetrada Fig. 12 – Graduações da régua milimetrada
  • 16.
    desenho técnico –pág. 16 _______________________________________________________________________________ _______________________________________________________________________________ Curso Técnico de Eletrônica Para medir ou marcar medidas coma régua, deve-se fixá-la sobre o local que se quer medir ou marcar. Para evitar erros, deve-se marcar a medida a partir do traço zero da régua.
  • 17.
    desenho técnico –pág. 17 _______________________________________________________________________________ _______________________________________________________________________________ Curso Técnico de Eletrônica 2.1.4 Régua “T” Consiste em uma haste reta e plana, tendo numa das extremidades uma travessa (cabeça) perpendicular à haste. Fig. 14 – Régua T Fig. 15 – Uso correto da Régua T Fig. 13 – Fazendo traços com a régua milimetrada
  • 18.
    desenho técnico –pág. 18 _______________________________________________________________________________ _______________________________________________________________________________ Curso Técnico de Eletrônica A cabeça da régua "T" deve ser firmemente encostada ao lado esquerdo do tampo da prancheta (mesa), sendo deslocada com a mão esquerda. O deslocamento da haste será paralelo à posição primitiva. A régua "T" é utilizada para traçar linhas horizontais. As linhas são sempre iniciadas da esquerda para a direita e na parte superior da haste, conforme, as ilustrações abaixo: Antes de utilizá-la, deve-se limpá-las com um pano e álcool. As réguas devem ser guardadas sobre uma superfície plana ou penduradas verticalmente para evitar empenos.
  • 19.
    desenho técnico –pág. 19 _______________________________________________________________________________ _______________________________________________________________________________ Curso Técnico de Eletrônica Exercícios Escreva na linha, acima de cada figura, a medida indicada pela seta. Com o auxílio da régua graduada, meça o comprimento das linhas abaixo e coloque a medida encontrada acima de cada uma delas, conforme o exemplo. Analise as afirmações abaixo e coloque um (V) nas verdadeiras e um (F) nas falsas: 1. ( ) A régua "T" serve para traçar linhas horizontais. 2. ( ) A graduação da régua pode ser em milímetros e polegadas. 3. ( ) Na régua graduada, a leitura se inicia no traço zero, a fim de evitar erros. 4. ( ) A régua graduada é utilizada para traçar linhas retas. 5. ( ) As réguas mais usadas são: a régua "T" e a régua graduada. 6. ( ) A régua "T" ê deslocada com a mão esquerda. 7. ( ) As réguas graduadas, são utilizadas, somente para medir. Fig. 16 – Exercícios leitura de medida – régua milimetrada Fig. 17 – Linhas para medir com a régua milimetrada
  • 20.
    desenho técnico –pág. 20 _______________________________________________________________________________ _______________________________________________________________________________ Curso Técnico de Eletrônica 2.1.5 ESQUADROS Os esquadros são instrumentos de desenho, de forma triangular. Os mais utilizados são os seguintes: • Esquadro de 45º, composto por dois ângulos de 45º e um de 90º. • Esquadro de 60º, composto por ângulos de 30º, 60º e 90º. Fig. 18 - Esquadros Fig. 19 – Traços verticais com Esquadros
  • 21.
    desenho técnico –pág. 21 _______________________________________________________________________________ _______________________________________________________________________________ Curso Técnico de Eletrônica Os esquadros são utilizados como auxiliares no traçado de retas verticais e inclinadas. O traçado destas retas segue a direção das setas indicadas na ilustração abaixo. Fig. 20 – Movimentação dos Esquadros sobre a régua T
  • 22.
    desenho técnico –pág. 22 _______________________________________________________________________________ _______________________________________________________________________________ Curso Técnico de Eletrônica Exercícios 1. Utilizando a régua "T" e um dos esquadros, complete o exercício abaixo. Conserve os mesmos afastamentos entre as linhas, medindo-os coma régua graduada. 2. Verifique as inclinações com que foram traçadas as linhas abaixo e complete os exercícios, conservando o mesmo afastamento e inclinação das linhas indicadas. 3. O exercício abaixo foi traçado com os ângulos de 30º e 60º. Complete o exercício, utilizando esquadro e régua "T". Fig. 21 – Exercícios – Linhas verticais Fig. 22 – Exercícios – Linhas inclinadas Fig. 23 – Exercícios – Linhas inclinadas 30ºe 60º
  • 23.
    desenho técnico –pág. 23 _______________________________________________________________________________ _______________________________________________________________________________ Curso Técnico de Eletrônica 2.1.6 COMPASSOS São instrumentos utilizados para traçar arcos de circunferências, circunferências e transportar medidas. Existem vários tipos de compassos, sendo os mais comuns os apresentados abaixo: A ponta da grafita deve estar sempre um pouco mais curta que a outra e deve ser chanfrada. para maior perfeição dos traçados. Fig. 24 – Tipos de compassos Fig. 25 – Ponta de grafite do compasso
  • 24.
    desenho técnico –pág. 24 _______________________________________________________________________________ _______________________________________________________________________________ Curso Técnico de Eletrônica Para traçar arcos e circunferências, dá-se ao compasso uma abertura igual ao raio desejado, com o auxílio da régua graduada e executa-se o traçado de acordo com o apresentado nas figuras em seqüência abaixo. Fig. 26 – Etapas de uso correto do compasso
  • 25.
    desenho técnico –pág. 25 _______________________________________________________________________________ _______________________________________________________________________________ Curso Técnico de Eletrônica Exercícios Complete com o compasso os exercícios abaixo, utilizando os centros indicados: Complete os exercícios, conforme os modelos indicados abaixo: Fig. 27 – Exercícios com compasso - círculos Fig. 28 – Exercícios com compasso – semicírculos
  • 26.
    desenho técnico –pág. 26 _______________________________________________________________________________ _______________________________________________________________________________ Curso Técnico de Eletrônica 2.2 FORMATOS DE PAPÉIS
  • 27.
    desenho técnico –pág. 27 _______________________________________________________________________________ _______________________________________________________________________________ Curso Técnico de Eletrônica O formato básico de papel, designado por A0 (A zero), e o do retângulo de lados medindo 841 mm e 1189 mm, tendo a área de 1 m2 . Do formato básico, derivam-se os demais formatos. Fig. 29 – Formato A4 - a área de 1 m2 .
  • 28.
    desenho técnico –pág. 28 _______________________________________________________________________________ _______________________________________________________________________________ Curso Técnico de Eletrônica Fig. 30 – Formato A4 e seus derivados
  • 29.
    desenho técnico –pág. 29 _______________________________________________________________________________ _______________________________________________________________________________ Curso Técnico de Eletrônica Dobramento de formatos Efetua-se o dobramento a partir do lado “d” (direito) em dobras verticais de 185 mm. A parte final “a” é dobrada ao meio. Fig. 31 – Tabela de dimensões de formatos
  • 30.
    desenho técnico –pág. 30 _______________________________________________________________________________ _______________________________________________________________________________ Curso Técnico de Eletrônica MARGEM DE FORMATOS Fig. 32 – Dobramento de formatos Fig. 33 – Margens de formatos
  • 31.
    desenho técnico –pág. 31 _______________________________________________________________________________ _______________________________________________________________________________ Curso Técnico de Eletrônica LEGENDA A legenda deve ficar no canto inferior direito dos formatos, A3, A2, A1 e A0, ou ao longo da largura da folha de desenho, no formato A4. Fig. 34 – legenda de formatos Fig. 35 – Dimensões de formatos
  • 32.
    desenho técnico –pág. 32 _______________________________________________________________________________ _______________________________________________________________________________ Curso Técnico de Eletrônica 3. Caligrafia Técnica Uma caligrafia simples, perfeitamente legível e facilmente desenhável, constitui uma das mais importantes condições dos desenhos técnicos. Em desenho técnico, usamos uma caligrafia obedecendo às normas e não à caligrafia comum. Vejamos a diferença. As letras e algarismos podem ser verticais ou inclinados para a direita, sendo usados, de preferência, estes últimos. Devem ser semelhantes aos dos tipos representados abaixo. ABCDEFGHIJKLMNOPQRSTUVWXYZ abcdefghijklmnopqrstuvwxyz 0123456789 ABCDEFGHIJKLMNOPQRSTUVWXYZ abcdefghijklmnopqrstuvwxyz 0123456789 Fig. 36 – Escrita à mão livre
  • 33.
    desenho técnico –pág. 33 _______________________________________________________________________________ _______________________________________________________________________________ Curso Técnico de Eletrônica As figuras abaixo mostram a posição da mão e a maneira de pegar e deslocar o lápis, fatores importantes para a obtenção de uma boa caligrafia. Fig. 37a – Escrita à mão livre – posição da mão
  • 34.
    desenho técnico –pág. 34 _______________________________________________________________________________ _______________________________________________________________________________ Curso Técnico de Eletrônica Exercícios 1. Escreva, de acordo com os modelos, o que se pede abaixo: Efetue as operações abaixo: Fig. 37b – Exercício de caligrafia Fig. 37c – Exercício de caligrafia
  • 35.
    desenho técnico –pág. 35 _______________________________________________________________________________ _______________________________________________________________________________ Curso Técnico de Eletrônica 3. Repita as frases abaixo, de acordo com o modelo inicial: O Desenho Técnico é utilizado pelas indústrias como linguagem técnica gráfica universal em que se expressam e registram idéias e dados para a construção de máquinas, móveis e estruturas. O conhecimento de desenho Técnico é indispensável a todos aqueles que necessitam executar tarefas, quer sejam de ajustagem, tornearia, marcenaria, eletricidade, etc. Fig. 37e – Exercício de caligrafia Fig. 37d – Exercício de caligrafia
  • 36.
    desenho técnico –pág. 36 _______________________________________________________________________________ _______________________________________________________________________________ Curso Técnico de Eletrônica Fig. 38 – Letra inclinada - Itálico
  • 37.
    desenho técnico –pág. 37 _______________________________________________________________________________ _______________________________________________________________________________ Curso Técnico de Eletrônica 4. Linhas Convencionais Ao analisarmos um desenho, notamos que ele apresenta linhas de tipos e espessuras diferentes. O conhecimento destas linhas e indispensável.para a interpretação dos desenhos. Quanto à espessura, as linhas devem ser: • Grossas • Médias • Finas A espessura da linha média deve ser a metade da linha grossa e a espessura da linha fina, metade da linha média. Linhas para arestas e contornos visíveis são de espessura grossa Linhas para arestas e contornos não visíveis são de espessura média e tracejada. Fig. 39 – Linhas grossas e de traço contínuo Fig. 40 – Linhas grossas tracejadas
  • 38.
    desenho técnico –pág. 38 _______________________________________________________________________________ _______________________________________________________________________________ Curso Técnico de Eletrônica Linhas de centro e eixo de simetria são de espessuras finas e formadas por traços e pontos. Linhas de Cota Elas são de espessura fina e de traço contínuo, sendo limitadas por setas nas extremidades. Linhas de Chamada ou Extensão São de espessura fina e traço contínuo. Não devem tocar o contorno do desenho e prolongam-se além da última linha de cota que limitam. Fig. 41 – Linhas finas traço-ponto Fig. 42 – Linhas de Cota Fig. 43 – Linhas de Chamada ou Extensão
  • 39.
    desenho técnico –pág. 39 _______________________________________________________________________________ _______________________________________________________________________________ Curso Técnico de Eletrônica Linhas de Corte São de espessura grossa, formada por traços e pontos. Servem para indicar cortes e seções. Linhas para Hachuras Elas são de espessura fina, traços contínuos ou tracejados, geralmente inclinados a 45º e mostram as partes cortadas da peça. Servem também para indicar o material de que a peça é feita, de acordo com as convenções recomendadas pela ABNT. Linhas de rupturas Para rupturas curtas Elas são de espessura média, traço contínuo e sinuoso e servem para indicar pequenas rupturas e cortes parciais. Fig. 44 – Linhas de Corte Fig. 45 – Linhas para Hachuras
  • 40.
    desenho técnico –pág. 40 _______________________________________________________________________________ _______________________________________________________________________________ Curso Técnico de Eletrônica Para rupturas longas Elas são de espessura fina, traço contínuo e com zigue-zague, conforme figuras abaixo. Linhas para representações simplificadas Elas são de espessura média, traço contínuo e servem para indicar o fundo de filetes de roscas e de dentes de engrenagens. Fig. 46 – Linhas para Rupturas Curtas Fig. 47 – Linhas para Rupturas Longas Fig. 48 – Linhas para Representações Simplificadas
  • 41.
    desenho técnico –pág. 41 _______________________________________________________________________________ _______________________________________________________________________________ Curso Técnico de Eletrônica Exercícios 1. Trace à mão livre, nos espaços correspondentes do quadro abaixo, os tipos das linhas utilizadas para cada caso. TIPOS EMPREGO 1. Linhas para arestas e contornos visíveis GROSSAS 2. Linha de corte 3. Linhas para arestas e contornos não visíveis MÉDIAS 4. Linhas de rupturas curtas 5. Linhas de cota Linhas para hachuras Linhas de chamada ou extensão 6. Linhas de centro ou eixo de simetria FINAS 7. Linhas de rupturas longas Fig. 49 – Exercícios sobre linhas 2. Numere nos círculos do desenho os tipos de linhas, de acordo com o quadro acima Fig. 50 – Exercícios sobre linhas
  • 42.
    desenho técnico –pág. 42 _______________________________________________________________________________ _______________________________________________________________________________ Curso Técnico de Eletrônica 5. Projeções Ortogonais Uma peça que estamos observando ou mesmo imaginando, pode ser desenhada (representada) num plano. A essa representação gráfica se dá o nome de "projeção". O plano e denominado "plano de projeção" e a representação da peça recebe, nele, o nome de projeção. Podemos obter as projeções através de observações feitas em posições determinadas. Assim teremos várias "vistas" da peça. Tomemos por exemplo uma caixa de fósforos: Fig. 51 – Plano de projeção Fig. 52 – Plano de projeção de uma caixa de fósforos
  • 43.
    desenho técnico –pág. 43 _______________________________________________________________________________ _______________________________________________________________________________ Curso Técnico de Eletrônica Para representar a caixa vista de frente, consideramos um plano vertical e vamos representar nele esta vista. A vista .de frente é, por isso, também denominada projeção vertical e/ou elevação. Reparemos, na figura abaixo, as projeções verticais ou elevações das peças. Elas são as vistas de frente das peças para o observador na posição indicada. Voltemos ao exemplo da caixa de fósforos. O observador quer representar a caixa, olhando-a por cima. Fig. 53 – Projeções verticais ou elevações de peças Fig. 54 – Projeção Horizontal Vista de Cima ou planta
  • 44.
    desenho técnico –pág. 44 _______________________________________________________________________________ _______________________________________________________________________________ Curso Técnico de Eletrônica Então usará um plano, que denominaremos de plano horizontal, e a projeção que representa esta "vista de cima" será denominada projeção horizontal vista de cima ou planta. A figura abaixo representa a projeção horizontal, vista de cima ou planta das peças, para o observador na posição indicada. O observador poderá representar a caixa, olhando-a de lado. Teremos uma vista lateral, e a projeção representará uma vista lateral que pode ser da direita ou da esquerda. Fig. 55 – Projeção Horizontal Vista de Cima ou planta Fig. 56 – Vista Lateral
  • 45.
    desenho técnico –pág. 45 _______________________________________________________________________________ _______________________________________________________________________________ Curso Técnico de Eletrônica Reparemos que uma peça pode ter, pelo que foi esclarecido, até seis vistas; entretanto, uma peça que estamos vendo ou imaginando. deve ser representada por um numero de vistas que nos de a idéia completa de peça, um numero de vistas essenciais para representá-la a fim de que possamos entender qual é a forma e quais as dimensões da peça. Estas vistas são chamadas de "vistas principais". Ao selecionar a posição da peça da qual se vai fazer a projeção, escol para a vertical, aquela vista que mais caracteriza ou individualiza a peça; por isso, é comum também chamar a projeção vertical (elevação) de vista principal. As três vistas (elevação, planta e vista lateral esquerda) dispostas em posições normalizadas pela ABNT nos dão as suas projeções. A vista de frente (elevação) e a vista de cima (planta) alinham-se verticalmente. A vista de frente (elevação) e a vista de lado (vista lateral esquerda) alinham-se horizontalmente. Fig. 57 – Vista de Frente – Vista de Cima Fig. 58 – Vista de Frente – Vista de Cima
  • 46.
    desenho técnico –pág. 46 _______________________________________________________________________________ _______________________________________________________________________________ Curso Técnico de Eletrônica Finalmente, temos a caixa de fósforos desenhada em três projeções. Fig. 59 – Vista de Frente – Vista de Cima – Vista de Lado
  • 47.
    desenho técnico –pág. 47 _______________________________________________________________________________ _______________________________________________________________________________ Curso Técnico de Eletrônica Exercícios RESPONDA: I. Quais as letras e números que indicam a vista de frente? 2. Que letra na vista lateral esquerda, representa o número 2, da vista de frente? 3. Quais são as letras e números que indicam a vista de cima? 4. Que número na vista de cima, representa a letra F, da vista de frente? 5. Que letra na vista lateral esquerda, representa o número 5, da vista de cima? 6. Que número na vista de frente, representa a letra R, da vista lateral esquerda? Fig. 60 – Exercícios - Vista de Frente – Vista de Cima – Vista de Lado
  • 48.
    desenho técnico –pág. 48 _______________________________________________________________________________ _______________________________________________________________________________ Curso Técnico de Eletrônica Por este processo podemos desenhar qualquer peça. Na vista lateral esquerda das projeções das peças abaixo, existem linhas tracejadas. Elas representam as arestas não visíveis. Fig. 61 – Exemplos – Três Vistas Fig. 62 – Exemplos – Linhas tracejadas representando arestas não visíveis
  • 49.
    desenho técnico –pág. 49 _______________________________________________________________________________ _______________________________________________________________________________ Curso Técnico de Eletrônica Nas projeções abaixo, aparecem linhas de centro. Nas projeções abaixo, foram empregados eixos de simetria. Fig. 63 – Exemplos – Linhas de Centro Fig. 64 – Exemplos – Eixos de Simetria
  • 50.
    desenho técnico –pág. 50 _______________________________________________________________________________ _______________________________________________________________________________ Curso Técnico de Eletrônica Exercícios 7. Complete, desenhando à mão livre, as projeções das peças apresentadas. Fig. 65 – Exercícios de Projeções Ortogonais
  • 51.
    desenho técnico –pág. 51 _______________________________________________________________________________ _______________________________________________________________________________ Curso Técnico de Eletrônica 8. Desenhe à mão livre, as plantas e vistas laterais esquerdas das peças apresentadas. Fig. 66 – Exercícios de Projeções Ortogonais
  • 52.
    desenho técnico –pág. 52 _______________________________________________________________________________ _______________________________________________________________________________ Curso Técnico de Eletrônica As projeções desenhadas nas folhas anteriores apresentaram a vista lateral esquerda, representando o que se vê olhando a peça pelo lado esquerdo, apesar de sua projeção estar à direita da elevação. Nos casos em que o maior número de detalhes estiver colocado no lado direito da peça, usamos a vista lateral direita, projetando-a ã esquerda da elevação, conforme exemplos abaixo. Fig. 67 – Exercícios de Projeções Ortogonais
  • 53.
    desenho técnico –pág. 53 _______________________________________________________________________________ _______________________________________________________________________________ Curso Técnico de Eletrônica 9. Identifique e numere as projeções correspondentes a cada peça representada em perspectiva. Fig. 68 – Exercícios de Projeções Ortogonais
  • 54.
    desenho técnico –pág. 54 _______________________________________________________________________________ _______________________________________________________________________________ Curso Técnico de Eletrônica Quando representamos uma peça pelas suas projeções, usamos as vistas que melhor identificam suas formas e dimensões, Podemos usar três ou mais vistas, como também podemos usar duas vistas e, em alguns casos, ate uma única vista. Nos exemplos abaixo estão representadas peças com duas vistas, onde continuará havendo uma vista principal, a vista de frente, sendo escolhida como segunda vista aquela que melhor complete a representação da peça. Nos exemplos abaixo estão representadas peças por uma única vista, Neste tipo de projeção ê indispensável o uso de símbolos: Fig. 69 – Uso de duas vistas Fig. 70 – Uso de uma única vista
  • 55.
    desenho técnico –pág. 55 _______________________________________________________________________________ _______________________________________________________________________________ Curso Técnico de Eletrônica 6. Dimensionamento e simbologia 6.1 Representação das Cotas Para a execução de uma peça, torna-se necessário que se coloque no desenho, alem das projeções que nos dão idéia da forma da peça, também as suas medidas e outras informações complementares. A isto chamamos Dimensionamento ou cotagem. A cotagem dos desenhos tem por objetivos principais determinar o tamanho e localizar exatamente os detalhes da peça. Por exemplo, para a execução da peça abaixo necessitamos saber as suas dimensões e a exata localização do furo. A Anotação - "esp. 8" - Refere-se, à espessura da peça. Para a cotagem de um desenho são necessários três elementos: • Linhas de Cota • Linhas de Extensão • Valor Numérico da Cota Fig. 71 – Representação de Cotas
  • 56.
    desenho técnico –pág. 56 _______________________________________________________________________________ _______________________________________________________________________________ Curso Técnico de Eletrônica 6.2 Regras de Cotagem Como vemos na figura acima, as linhas de Cota são de espessura fina, traço continuo, limitadas por setas nas extremidades. As linhas de extensão são de espessura fina, traço contínuo, não devem tocar o contorno do desenho ria peça e prolongam-se um pouco além da última linha de cota que abrangem. • O número que exprime o valor numérico da cota pode ser escrito. • Acima da linha de cota, eqüidistante dos extremos. • Em intervalo aberto dela interrupção da linha de cota. Fig. 72 – Elementos de Cotagem de Desenho Fig. 73 – Regras de Cotagem de Desenho
  • 57.
    desenho técnico –pág. 57 _______________________________________________________________________________ _______________________________________________________________________________ Curso Técnico de Eletrônica No mesmo desenho devemos empregar apenas uma destas duas modalidades. O valor numérico colocado acima da linha de cota é mais fácil e evita a possibilidade de erros. Em desenho técnico, normalmente, a unidade de medida é o milímetro, sendo dispensada a colocação do símbolo junto ao valor numérico da cota. Se houver o emprego de outra unidade, coloca-se o respectivo símbolo ao lado do valor numérico, conforme figura abaixo: As cotas devem ser colocadas de modo que o desenho seja lido da esquerda para a direita e de baixo para cima, paralelamente à dimensão cotada. Fig. 74 – Representação de Cotagem de seções quadradas e circulares Fig. 75 – Posição correta dos números de cota
  • 58.
    desenho técnico –pág. 58 _______________________________________________________________________________ _______________________________________________________________________________ Curso Técnico de Eletrônica Cada cota deve ser indicada na vista que mais claramente representa a forma do elemento cotado. Deve-se evitar a repetição de cotas. As cotas podem ser colocadas dentro ou fora dos elementos que representam, atendendo a melhores requisitos de clareza e facilidade de execução. Nas transferências de cotas para locais mais convenientes, devemos evitar o cruzamento das linhas de extensão com linhas de cota. As linhas de extensão são traçadas perperdicularmente à dimensão cotada ou, em caso de necessidade, obliquamente, porém paralelas entre si. Fig. 76 – Representação de Cotas na melhor vista
  • 59.
    desenho técnico –pág. 59 _______________________________________________________________________________ _______________________________________________________________________________ Curso Técnico de Eletrônica Fig. 77 – Representação do número de Cotagem dentro/fora do elemento
  • 60.
    desenho técnico –pág. 60 _______________________________________________________________________________ _______________________________________________________________________________ Curso Técnico de Eletrônica Exercícios 1. Localize as cotas necessárias para a execução das peças abaixo representadas. Não coloque o valor numérico das cotas. Trace à mão livre, apenas as linhas de cota e de extensão. Fig. 78 – Exercícios - Representação da Cotagem
  • 61.
    desenho técnico –pág. 61 _______________________________________________________________________________ _______________________________________________________________________________ Curso Técnico de Eletrônica 2. Localize as cotas necessárias para a execução das peças apresentadas. Não coloque o valor numérico das cotas. Trace à mão livre, apenas as linhas de cota e de extensão. Fig. 79 – Exercícios - Representação da Cotagem
  • 62.
    desenho técnico –pág. 62 _______________________________________________________________________________ _______________________________________________________________________________ Curso Técnico de Eletrônica 6.3 Simbologia e Convenções A ABNT (ASSOCIAÇAO BRASILEIRA DE NORMAS TÉCNICAS), em suas normas NB-8 e NB-13, recomenda a utilização dos símbolos abaixo, que devem ser colocados sempre antes dos valores numéricos das cotas. φ Indicativo de Diâmetro Indicativo de quadrado R Indicativo de Raio r Quando, na vista cotada, for evidente que se trata de diâmetro ou quadrado, os respectivos símbolos podem ser dispensados. Exemplos: Fig. 80 – Simbologia e Convenções Fig. 81 – Dispensa de simbologia para diâmetro ou quadrado
  • 63.
    desenho técnico –pág. 63 _______________________________________________________________________________ _______________________________________________________________________________ Curso Técnico de Eletrônica Símbolos em materiais perfilados Os símbolos abaixo devem ser colocados sempre antes da designação da bitola do material. Fig. 82 – Simbologia em Materiais Perfilados
  • 64.
    desenho técnico –pág. 64 _______________________________________________________________________________ _______________________________________________________________________________ Curso Técnico de Eletrônica 7. Escalas Os desenhos que utilizamos em oficinas, para orientar a construção de uma peça, nem sempre podem ser executados cornos valores reais das medidas da peça. Por exemplo: é impossível representar no desenho uma mesa de três metros de comprimento em seu tamanho real, como também difícil ou quase impossível representar em seu tamanho natural uma peça para relógio, com três milímetros de diâmetro. O recurso será, então, reduzir ou ampliar o desenho, conservando a proporção da peça a ser executada. Em todos estes casos, isto é, desenhando na mesma medida, reduzindo ou ampliando, estaremos empregando escalas. Escala é, portanto, a relação entre as medidas do desenho e a da peça. ESCALAS USUAIS Quando o desenho for do mesmo tamanho da peça ou quando tiver as mesmas dimensões indicadas nas cotas, teremos a escala natural 7.1 Escala Natural A escala natural é indicada da seguinte forma: Escala 1:1, que se lê "Escala um por um".
  • 65.
    desenho técnico –pág. 65 _______________________________________________________________________________ _______________________________________________________________________________ Curso Técnico de Eletrônica O exemplo abaixo mostra o desenho de um punção de bico com todas as indicações necessárias ã sua execução na oficina. Note que, devido ao seu tamanho, foi possível desenhar em escala natural. 7.2 Escala de Redução Quando o desenho de uma peça for efetuado em tamanho menor do que o tamanho da própria peça, estaremos usando escala de Redução. Note que, embora reduzindo o tamanho do desenho, as cotas conservaram as medidas reais da peça. A escala de redução é indicada da seguinte forma: Escala 1:2, que se lê "Escala um por dois". Neste exemplo, o desenho está duas vezes menor que os valores das cotas. Fig. 83a – Escala Natural
  • 66.
    desenho técnico –pág. 66 _______________________________________________________________________________ _______________________________________________________________________________ Curso Técnico de Eletrônica 7.3 Escala de Ampliação As Escalas de redução recomendadas pela ABNT são as seguintes: 1 : 2 1 : 2,5 1 : 5 1 : 10 1 : 100 Quando o desenho de uma peça for efetuado no tamanho maior do que esta, estaremos usando escala de ampliação. Note que as cotas conservaram, também, os valores reais da peça. As escalas de ampliações recomendadas pela ABNT são as seguintes: 2:1 5:1 10:1 Fig. 83b – Escala com Redução Fig. 83c – Escala com Ampliação
  • 67.
    desenho técnico –pág. 67 _______________________________________________________________________________ _______________________________________________________________________________ Curso Técnico de Eletrônica A interpretação de uma escala em relação à razão numérica é feita da seguinte forma: Usam-se dois números; o primeiro, refere-se ao desenho e o segundo, à peça. O exemplo abaixo significa que 2 mm na peça corresponde a 1 mm no desenho. A redução ou ampliação só terá efeito para o traçado do desenho, pois na cotagem colocaremos as medidas reais da peça. Em escalas as medidas angulares não sofrem redução ou ampliação como as lineares; por exemplo, seja qual for a escala empregada, um ângulo de 60º será representado com o mesmo valor. Fig. 83d – Leitura de Escala Fig. 83e – Ângulos em Desenhos OBSERVAÇÕES: 1. A escala do desenho deve obrigatoriamente ser indicada na legenda. 2. Constando na mesma folha desenhos em escalas diferentes, estas devem ser indicadas tanto na legenda como junto aos desenhos a que correspondem. 3. Sempre que possive1 devemos desenhar em escala natural.
  • 68.
    desenho técnico –pág. 68 _______________________________________________________________________________ _______________________________________________________________________________ Curso Técnico de Eletrônica Exercícios 1. Complete as lacunas: Dimensão da peça Escala Dimensão do desenho 42 1:2 1:1 70 1:2 22 35 175 65 1:2,5 1:5 40 8 2:1 25,4 25,4 145 29 16 2:1 5:1 260 75 30 220 1:10 1:2,5 16 2:1 74 60 12 2,6 10:1 5:1 72 1,2 12 1:2,5 15 Fig. 84 – Exercícios de Escalas
  • 69.
    desenho técnico –pág. 69 _______________________________________________________________________________ _______________________________________________________________________________ Curso Técnico de Eletrônica 2. Coloque valores numéricos nas linhas de cota, de acordo com a escala indicada: Fig. 85 – Exercícios de Escalas
  • 70.
    desenho técnico –pág. 70 _______________________________________________________________________________ _______________________________________________________________________________ Curso Técnico de Eletrônica 8 8. . C Co or rt te es s e e S Se eç çõ õe es s 8.1 Introdução Os cortes são utilizados em desenhos de peças e conjuntos, para facilitar a interpretação de detalhes internos que, através das vistas, sem o emprego do corte, seriam de difícil interpretação. Vimos que as vistas principais apresentam detalhes internos, com linhas tracejadas indicando os contornos e arestas não visíveis, como o exemplo abaixo. Se empregarmos o corte, os detalhes internos passarão a ficar visíveis. Imaginemos que a peça seja cortada no sentido longitudinal e a parte da frente, retirada; na projeção, teremos a elevação em corte. Fig. 86 – Cortes e Seções Fig. 87 – Plano de Corte
  • 71.
    desenho técnico –pág. 71 _______________________________________________________________________________ _______________________________________________________________________________ Curso Técnico de Eletrônica OBSERVAÇÕES: a) O corte é imaginário. b) O sombreado, na projeção, corresponde à parte da peça que foi atingida pelo corte. c) A região não sombreada indica a não atingida. Fig. 88 – Peça cortada Fig. 89 – Vistas da Peça Cortada
  • 72.
    desenho técnico –pág. 72 _______________________________________________________________________________ _______________________________________________________________________________ Curso Técnico de Eletrônica Exercícios 1. Trace as linhas de corte, nas projeções abaixo, considerando os cortes efetuados. Fig. 90 – Exercícios Cortes e Seções
  • 73.
    desenho técnico –pág. 73 _______________________________________________________________________________ _______________________________________________________________________________ Curso Técnico de Eletrônica 8.2 Rupturas Rupturas são representações convencionais utilizadas para o desenho de peças que, devido ao seu comprimento, necessitam ser encurtadas para melhor aproveitamento de espaço no desenho. De acordo com a sua forma. A linha de ruptura é de espessura média. A representação de rupturas é empregada quando, na parte que se imagina retirada, não houver detalhes que necessitem ser mostrados. O comprimento real da peça é dado pelo valor numérico da cota. Fig. 91 – Rupturas Fig. 92 – Peça com Rupturas
  • 74.
    desenho técnico –pág. 74 _______________________________________________________________________________ _______________________________________________________________________________ Curso Técnico de Eletrônica 9 9. . P Pe er rs sp pe ec ct ti iv va as s I Is so om mé ét tr ri ic ca as s A perspectiva, por ser desenho ilustrativo, auxilia na interpretação de peças, embora, em muitos casos, não possa mostrar todos os detalhes. A perspectiva isométrica (medidas iguais) é uma das mais simples e eficientes. Parte de três eixos a 120 graus (isométricos) sobre os quais marcam-se as medidas da peça. As arestas paralelas da peça são traçadas na perspectiva isométrica por linhas também paralelas. Fig. 93 - Peça desenhada em perspectiva isométrica
  • 75.
    desenho técnico –pág. 75 _______________________________________________________________________________ _______________________________________________________________________________ Curso Técnico de Eletrônica Os quadros de 1 a 6 mostram a seqüência do traçado à mão livre da perspectiva isométrica. Fig. 94 – Ângulos da Perspectiva Isométrica Fig. 95 – Seqüência de Traçado da Perspectiva Isométrica
  • 76.
    desenho técnico –pág. 76 _______________________________________________________________________________ _______________________________________________________________________________ Curso Técnico de Eletrônica Os elementos cilíndricos e os arcos são traçados em perspectiva isométrica, conforme os desenhos abaixo: Fases do traçado à mão livre de elementos cilíndricos e arcos. Fig. 96 – Seqüência de Traçado da Perspectiva Isométrica para Elementos Cilíndricos e Arcos Fig. 97 – Fases do traçado à mão livre de elementos cilíndricos e arcos
  • 77.
    desenho técnico –pág. 77 _______________________________________________________________________________ _______________________________________________________________________________ Curso Técnico de Eletrônica 1 10 0. . T Te er rc ce ei ir ro o D Di ie ed dr ro o No estudo e nos exercícios de projeção que vimos até agora, as vistas têm a seguinte distribuição: As projeções com esta disposição das vistas são chamadas "projeção no 1º diedro", sendo esse sistema recomendado pela como norma para os desenhos efetuados no Brasil. Este tipo de projeção é também usado na Alemanha e em toda a Europa. Nos Estados Unidos e Canadá, entretanto, convencionou-se usar as projeções com disposição diferente das vistas, sendo esse sistema chamado de projeção no 3º diedro. É importante o conhecimento deste tipo de representação, visto existir no Brasil um grande numero de indústrias de origem norte-americana e canadense. Observa-se que a vista de cima fica acima da vista de frente, enquanto que as laterais direita e esquerda ficam, respectivamente, à direita e à esquerda da vista de frente. Fig. 98 – Distribuição das Vistas – projeção no 1ºDiedro Fig. 99 – Distribuição das Vistas
  • 78.
    desenho técnico –pág. 78 _______________________________________________________________________________ _______________________________________________________________________________ Curso Técnico de Eletrônica Exercícios 1. As peças abaixo estão desenhadas no 3º diedro. Todas elas estão incompletas. Complete- as, colocando as linhas faltantes. Fig. 100 – Exercícios Terceiro Diedro
  • 79.
    desenho técnico –pág. 79 _______________________________________________________________________________ _______________________________________________________________________________ Curso Técnico de Eletrônica Referências Bibliográficas Módulos de Desenho Técnico Mecânico do SENAI – Departamento Regional de Minas Gerais.