Desenho Arquitetônico
UNIDADE 1b
CONCEITOS INICIAIS, NORMAS TÉCNICAS
APLICÁVEIS E OS DIFERENTES TIPOS E
ETAPAS DO DESENHO DE ARQUITETURA
UNIVERSIDADE FEDERAL DO RIO GRANDE – FURG
ESCOLA DE ENGENHARIA
NÚCLEO DE EXPRESSÃO GRÁFICA
Prof. Sinval Xavier
DESENHO ARQUITETÔNICO
O desenho arquitetônico é, em um sentido estrito, uma
especialização do desenho técnico normatizado voltada à
execução e a representação de projetos de arquitetura.
É formado pelo conjunto de registros gráficos produzidos
por arquitetos ou outros profissionais durante o processo de
projeto ou documentação de uma edificação.
O desenho de arquitetura, portanto, manifesta-se como um
código para uma linguagem, estabelecida entre o
emissor (o desenhista ou projetista) e o receptor (o leitor
do projeto). Desta forma, seu entendimento envolve um certo
nível de treinamento, seja por parte do desenhista ou do leitor
do desenho.
Prof. Sinval Xavier
Representações gráficas
Prof. Sinval Xavier
Representações gráficas
Prof. Sinval Xavier
Prof. Sinval Xavier
AS REPRESENTAÇÕES NAS DIFERENTES ETAPAS DE
DESENVOLVIMENTO DE UM PROJETO ARQUITETÔNICO
Estudo Preliminar
Anteprojeto
Projeto Legal
Projeto Executivo
Detalhamento
1. ESTUDO PRELIMINAR
Resultado das primeiras etapas de desenvolvimento do projeto
arquitetônico, na qual o projetista, partindo de um CONCEITO
inicial, busca dar solução adequada aos diversos “problemas de
projeto”: programa de necessidades, terreno, entorno,
condicionantes físicos e legais, etc.
O estudo preliminar se materializa por uma série de croquis e
esboços que necessariamente não precisam seguir todas as regras
tradicionais do desenho arquitetônico técnico. É um desenho mais
livre, constituído por traços sem a rigidez dos desenhos típicos das
etapas posteriores.
Podem ser utilizados diversos tipos de recursos digitais, tais como
os programas de croquis (sketch) bi e tridimensionais, de design
gráfico, editoração de fotos e outros, associados ou não a
programas CAD.
Prof. Sinval Xavier
Prof. Sinval Xavier
ESTUDO PRELIMINAR - USO DE MEIOS ANALÓGICOS
ESTUDO PRELIMINAR - USO DE MEIOS DIGITAIS
Prof. Sinval Xavier
2. ANTEPROJETO
Na etapa de Anteprojeto, o projetista e o cliente realizam as
revisões e acertos finais, aprovando ou reprovando detalhes,
sugerindo pequenas alterações, etc.
As representações da fase de anteprojeto são mais técnicas e com
um grau de precisão bem maior do que na etapa anterior. Em geral
seguem a normatização do desenho arquitetônico, mas podem
ainda conter elementos que facilitem a interpretação e aprovação
final do projeto pelo cliente.
Com base no anteprojeto de arquitetura são executados os
anteprojetos das diferentes instalações: hidrossanitárias, elétricas,
telefônicas, rede, etc. e o anteprojeto da estrutura.
Prof. Sinval Xavier
Prof. Sinval Xavier
3. PROJETO LEGAL
Etapa seguinte a aprovação final dos anteprojetos (arquitetônicos e
de instalações) pelo cliente.
Nesta fase são elaboradas todas as representações de acordo com as
exigências dos órgãos públicos responsáveis pela aprovação e
licenciamento da obra.
São desenhos essencialmente técnicos, que devem seguir além das
normas técnicas do desenho arquitetônico e técnico, as normas e
regulamentos dos órgãos públicos a que serão encaminhadas.
O projeto legal deverá demonstrar claramente a sua adequação as
normas urbanísticas locais, suas representações são essencialmente
técnicas e devem obedecer as exigências do órgão público.
Em alguns casos o projetista utiliza o projeto executivo (etapa final)
para encaminhamento ao órgão público.
Prof. Sinval Xavier
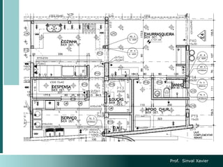
4. PROJETO EXECUTIVO
Com base nos anteprojetos é realizado o procedimento de
compatibilização entre os mesmos, no qual são verificadas todas as
possíveis interferências entre arquitetura, estrutura e instalações,
evitando sobreposição de elementos e interferências indesejadas.
Após a compatibilização é realizado o projeto executivo, que
compreende o desenvolvimento detalhado do anteprojeto,
fornecendo todas as informações arquitetônicas necessárias à
execução da obra.
As representações técnicas do projeto executivo, devem apresentar o
maior número de informações possível, a fim de evitar dúvidas durante
a obra, contendo, de preferência, a localização da estrutura e dos
pontos de instalação. São indicados também os acabamentos dos
ambientes.
Complementam o projeto executivo o memorial descritivo e as plantas
ou cadernos de detalhamento.
Prof. Sinval Xavier
Prof. Sinval Xavier
5. DETALHAMENTO
Realizado concomitantemente ao projeto executivo, podendo fazer
parte desse, ou compor documento em separado, o detalhamento
mostra como deverá ser executado todo e qualquer elemento
construtivo e/ou acabamentos que, por suas particularidades, não
são representados de forma completa nas plantas baixas, cortes e
elevações do projeto executivo e/ou no memorial descritivo.
O detalhamento resulta em desenhos em maior escala em relação
as do projeto executivo e com um maior número de informações.
Prof. Sinval Xavier
Prof. Sinval Xavier
Prof. Sinval Xavier
NORMAS TÉCNICAS
NBR 6492/2021 – Representação de projetos de arquitetura
Norma que fixa que as condições exigíveis para representação gráfica
de projetos de arquitetura, visando à sua boa compreensão.
NBR 16752/2020 – Folhas de desenho – laiaute e dimensões
Norma que estabelece a padronização e características das folhas a
serem empregadas no desenho técnico.
* complementa a NBR 6492.
Prof. Sinval Xavier
BIBLIOGRAFIA
SCHULER, Denise; MUKAY, Hitomi. Apostila da Disciplina de Desenho
Técnico I. Curso de Arquitetura da Faculdade Assis Gurgacz – FAC.
Cascavel. (200?). Disponível em:
http://pt.scribd.com/doc/42762695/Apostila-Desenho-Arquitetura-FAG.
Acessado em 25/06/2010.
TAMASHIRO, Herverton A. Desenho técnico arquitetônico: constatação
do atual ensino nas escolas brasileiras de arquitetura e urbanismo.
Dissertação de Mestrado. Escola de Engenharia de São Carlos, USP. São
Carlos, 2003.

DA_Unidade_1b.pptx

  • 1.
    Desenho Arquitetônico UNIDADE 1b CONCEITOSINICIAIS, NORMAS TÉCNICAS APLICÁVEIS E OS DIFERENTES TIPOS E ETAPAS DO DESENHO DE ARQUITETURA UNIVERSIDADE FEDERAL DO RIO GRANDE – FURG ESCOLA DE ENGENHARIA NÚCLEO DE EXPRESSÃO GRÁFICA Prof. Sinval Xavier
  • 2.
    DESENHO ARQUITETÔNICO O desenhoarquitetônico é, em um sentido estrito, uma especialização do desenho técnico normatizado voltada à execução e a representação de projetos de arquitetura. É formado pelo conjunto de registros gráficos produzidos por arquitetos ou outros profissionais durante o processo de projeto ou documentação de uma edificação. O desenho de arquitetura, portanto, manifesta-se como um código para uma linguagem, estabelecida entre o emissor (o desenhista ou projetista) e o receptor (o leitor do projeto). Desta forma, seu entendimento envolve um certo nível de treinamento, seja por parte do desenhista ou do leitor do desenho. Prof. Sinval Xavier
  • 3.
  • 4.
  • 5.
    Prof. Sinval Xavier ASREPRESENTAÇÕES NAS DIFERENTES ETAPAS DE DESENVOLVIMENTO DE UM PROJETO ARQUITETÔNICO Estudo Preliminar Anteprojeto Projeto Legal Projeto Executivo Detalhamento
  • 6.
    1. ESTUDO PRELIMINAR Resultadodas primeiras etapas de desenvolvimento do projeto arquitetônico, na qual o projetista, partindo de um CONCEITO inicial, busca dar solução adequada aos diversos “problemas de projeto”: programa de necessidades, terreno, entorno, condicionantes físicos e legais, etc. O estudo preliminar se materializa por uma série de croquis e esboços que necessariamente não precisam seguir todas as regras tradicionais do desenho arquitetônico técnico. É um desenho mais livre, constituído por traços sem a rigidez dos desenhos típicos das etapas posteriores. Podem ser utilizados diversos tipos de recursos digitais, tais como os programas de croquis (sketch) bi e tridimensionais, de design gráfico, editoração de fotos e outros, associados ou não a programas CAD. Prof. Sinval Xavier
  • 7.
    Prof. Sinval Xavier ESTUDOPRELIMINAR - USO DE MEIOS ANALÓGICOS
  • 8.
    ESTUDO PRELIMINAR -USO DE MEIOS DIGITAIS Prof. Sinval Xavier
  • 9.
    2. ANTEPROJETO Na etapade Anteprojeto, o projetista e o cliente realizam as revisões e acertos finais, aprovando ou reprovando detalhes, sugerindo pequenas alterações, etc. As representações da fase de anteprojeto são mais técnicas e com um grau de precisão bem maior do que na etapa anterior. Em geral seguem a normatização do desenho arquitetônico, mas podem ainda conter elementos que facilitem a interpretação e aprovação final do projeto pelo cliente. Com base no anteprojeto de arquitetura são executados os anteprojetos das diferentes instalações: hidrossanitárias, elétricas, telefônicas, rede, etc. e o anteprojeto da estrutura. Prof. Sinval Xavier
  • 10.
  • 11.
    3. PROJETO LEGAL Etapaseguinte a aprovação final dos anteprojetos (arquitetônicos e de instalações) pelo cliente. Nesta fase são elaboradas todas as representações de acordo com as exigências dos órgãos públicos responsáveis pela aprovação e licenciamento da obra. São desenhos essencialmente técnicos, que devem seguir além das normas técnicas do desenho arquitetônico e técnico, as normas e regulamentos dos órgãos públicos a que serão encaminhadas. O projeto legal deverá demonstrar claramente a sua adequação as normas urbanísticas locais, suas representações são essencialmente técnicas e devem obedecer as exigências do órgão público. Em alguns casos o projetista utiliza o projeto executivo (etapa final) para encaminhamento ao órgão público. Prof. Sinval Xavier
  • 12.
    4. PROJETO EXECUTIVO Combase nos anteprojetos é realizado o procedimento de compatibilização entre os mesmos, no qual são verificadas todas as possíveis interferências entre arquitetura, estrutura e instalações, evitando sobreposição de elementos e interferências indesejadas. Após a compatibilização é realizado o projeto executivo, que compreende o desenvolvimento detalhado do anteprojeto, fornecendo todas as informações arquitetônicas necessárias à execução da obra. As representações técnicas do projeto executivo, devem apresentar o maior número de informações possível, a fim de evitar dúvidas durante a obra, contendo, de preferência, a localização da estrutura e dos pontos de instalação. São indicados também os acabamentos dos ambientes. Complementam o projeto executivo o memorial descritivo e as plantas ou cadernos de detalhamento. Prof. Sinval Xavier
  • 13.
  • 14.
    5. DETALHAMENTO Realizado concomitantementeao projeto executivo, podendo fazer parte desse, ou compor documento em separado, o detalhamento mostra como deverá ser executado todo e qualquer elemento construtivo e/ou acabamentos que, por suas particularidades, não são representados de forma completa nas plantas baixas, cortes e elevações do projeto executivo e/ou no memorial descritivo. O detalhamento resulta em desenhos em maior escala em relação as do projeto executivo e com um maior número de informações. Prof. Sinval Xavier
  • 15.
  • 16.
    Prof. Sinval Xavier NORMASTÉCNICAS NBR 6492/2021 – Representação de projetos de arquitetura Norma que fixa que as condições exigíveis para representação gráfica de projetos de arquitetura, visando à sua boa compreensão. NBR 16752/2020 – Folhas de desenho – laiaute e dimensões Norma que estabelece a padronização e características das folhas a serem empregadas no desenho técnico. * complementa a NBR 6492.
  • 17.
    Prof. Sinval Xavier BIBLIOGRAFIA SCHULER,Denise; MUKAY, Hitomi. Apostila da Disciplina de Desenho Técnico I. Curso de Arquitetura da Faculdade Assis Gurgacz – FAC. Cascavel. (200?). Disponível em: http://pt.scribd.com/doc/42762695/Apostila-Desenho-Arquitetura-FAG. Acessado em 25/06/2010. TAMASHIRO, Herverton A. Desenho técnico arquitetônico: constatação do atual ensino nas escolas brasileiras de arquitetura e urbanismo. Dissertação de Mestrado. Escola de Engenharia de São Carlos, USP. São Carlos, 2003.