Planta de Situação
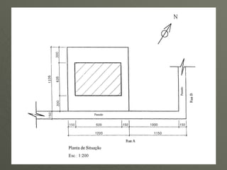
A PLANTA DE SITUAÇÃO, é uma das partes constituintes de um projeto arquitetônico;  Tem como objetivo apresentar a posição do lote (terreno) em relação a seus confrontantes (ruas, praças, etc.) e a posição da construção em relação ao lote com as suas devidas dimensões.
Principais  recomendações  no traçado da planta de situação   a) Escala mínima a ser adotada será de 1-500; b) A frente principal da construção deverá ser desenhada voltada para baixo  c) A construção será representada na planta de situação apenas pelo seu contorno externo, sendo o seu interior hachurado (linha contínua estreita - fina);  d) O desenho deverá conter todas as cotas necessárias
e) A nomenclatura ‘Planta de Situação”, bem como a “Escala” utilizada no desenho deverão ser indicadas no canto inferior direito ou esquerdo do desenho;  f) Na planta de situação deverão ser indicadas as seguintes informações: 1. O terreno;  2. Posição da construção em relação aos limites do terreno;  3. Orientação geográfica com indicação do Norte (Norte Magnético);
 
 

Aula 8 (b) p.situação

  • 1.
  • 2.
    A PLANTA DESITUAÇÃO, é uma das partes constituintes de um projeto arquitetônico; Tem como objetivo apresentar a posição do lote (terreno) em relação a seus confrontantes (ruas, praças, etc.) e a posição da construção em relação ao lote com as suas devidas dimensões.
  • 3.
    Principais recomendações no traçado da planta de situação a) Escala mínima a ser adotada será de 1-500; b) A frente principal da construção deverá ser desenhada voltada para baixo c) A construção será representada na planta de situação apenas pelo seu contorno externo, sendo o seu interior hachurado (linha contínua estreita - fina); d) O desenho deverá conter todas as cotas necessárias
  • 4.
    e) A nomenclatura‘Planta de Situação”, bem como a “Escala” utilizada no desenho deverão ser indicadas no canto inferior direito ou esquerdo do desenho; f) Na planta de situação deverão ser indicadas as seguintes informações: 1. O terreno; 2. Posição da construção em relação aos limites do terreno; 3. Orientação geográfica com indicação do Norte (Norte Magnético);
  • 5.
  • 6.