Gerenciamento de Canteiro de obras.
Prof. MSc. Giovani Laquini
Parte 01
Tecnologia, Gestão e Desempenho das Construções
2
Engenharia Civil (UFMG)
“Engenharia de obra”  MBA Gestão de projetos (FGV)
O problema na construção civil: infiltrações recorrentes
Mestrado – Recorrência de patologias / Ergonomia
Perícia Judicial
Vistoria / Avaliação Imobiliária
Consultoria
Apresentação – Prof. Giovani Laquini
3
Nome
Formação
Experiência profissional
Área de atuação
Qual sua expectativa com o título de especialista?
Apresentação – Alunos
4
1 - Canteiro de Obras:
- Conceitos e definições;
- Tipologias e exemplos.
2 - Normas Técnicas:
- NR 18 - condições e meio ambiente do trabalho na indústria da construção
(ministério do trabalho);
- NBR 12284 (NB-1367) - áreas de vivência em canteiros de obras.
3 - Construção Enxuta (Lean Construction):
- Conceitos e definições;
- Os 11 princípios da Construção Enxuta;
- A logística na Construção Enxuta;
Ementa
5 - Planejando e executando o Layout do Canteiro de Obras:
- Forma de descarga no canteiro;
- Transportes internos;
- Modos de armazenagem;
- Modos de aplicação;
- Geração de resíduos na aplicação;
- Consumo de água, energia elétrica e combustível.
6 - Gerenciando o Canteiro de Obras
- PDCA;
-Gestão de pessoas e desempenho organizacional (maximizando o
desempenho do Engenheiro na obra através da postura, delegando atribuições,
controlando a equipe e gerenciamento de conflitos).
7 - Outras considerações:
- Containers;
- Pré-fabricado;
- Aproveitamento de edificações anteriores;
- Convencional, com sistema de vedações racionalizado e desmontável.5
Gerenciamento de Canteiro de obras.
Prof. MSc. Giovani Laquini
Parte 01
Tecnologia, Gestão e Desempenho das Construções
7
O QUE DEVEMOS FAZER ANTES DE INICIAR UMA OBRA?
As primeiras coisas que precisamos fazer antes de começar
uma obra é analisar a região e conhecer o terreno,
necessitando ainda de:
- Realizar Vistoria Cautelar nas vizinhanças;
- Elaborar uma curva ABC de insumos para o
dimensionamento do efetivo da obra;
- Fazer a Comunicação Prévia ao Mistério do Trabalho;
- Conferir as medidas do terreno;
- Avaliar a situação dos volumes de cortes e aterros;
- Avaliar as condições para as ligações provisórias de
energia, da água e do esgoto e dimensionar a fossa
séptica (se for o caso);
- Dimensionar o exaustor da cozinha (se for o caso);
- Avaliar o volume dos materiais a serem estocados no
canteiro (ex. areia, brita, cimento, aço, etc).
FLUXOGRAMA DOS ESTUDOS DO CANTEIRO
FLUXOGRAMA DOS ESTUDOS DO CANTEIRO
Gerenciamento de Canteiro de obras.
Prof. MSc. Giovani Laquini
Parte 01
Tecnologia, Gestão e Desempenho das Construções
As instalações elétricas devem possuir sistema de
aterramento elétrico de proteção e devem ser
submetidas a inspeções e medições elétricas periódicas,
com emissão dos respectivos laudos por profissional
legalmente habilitado, em conformidade com o projeto
das instalações elétricas temporárias e com as normas
técnicas nacionais vigentes.
É obrigatória a utilização do dispositivo Diferencial
Residual (DR), como medida de segurança adicional
nas instalações elétricas, nas situações previstas nas
normas técnicas nacionais vigentes.
INSTALAÇÕES ELÉTRICAS PROVISÓRIA
Os quadros de distribuição devem ficar em locais
bem visíveis, sinalizados e de fácil acesso, mas longe
da passagem de pessoas, materiais e equipamentos;
Os fios e cabos devem ser estendidos em lugares
que não atrapalhem a passagem de pessoas,
máquinas e materiais, e serem protegidos por calhas
de madeira, canaletas ou eletrodutos e a uma altura
que não deixe as pessoas e máquinas encostarem
neles.
INSTALAÇÕES ELÉTRICAS PROVISÓRIA
Deverá ser providenciada
a ligação de água e
construído o abrigo para o
cavalete (entrada / registro/
pena d’água) e respectivo
hidrômetro (se previsto).
Não existindo água, deve-
se providenciar abertura de
poço de água, com os
seguintes cuidados:
INSTALAÇÕES HIDROSANITÁRIAS PROVISÓRIA
a) que as instalações estejam distantes dos alicerces e
em local de pouco trânsito;
b) que as fossas sépticas e sumidouros estejam distantes
da rede hidráulica, a mais de 15 metros de distância;
c) Providenciar junto ao órgão competente a outorga de
direito de uso de recursos hídricos.
Ex. IGAM (http://igam.mg.gov.br/outorga/formulários)
INSTALAÇÕES HIDROSANITÁRIAS PROVISÓRIA
Gerenciamento de Canteiro de obras.
Prof. MSc. Giovani Laquini
Parte 02
Tecnologia, Gestão e Desempenho das Construções
CANTEIRO DE OBRA - CONCEITOS
O canteiro de obras pode ser definido como:
 “área de trabalho fixa e temporária, onde se desenvolvem operações de apoio e
execução de uma obra” (NR-18);
 o conjunto de “áreas destinadas à execução e apoio dos trabalhos da indústria da
construção, dividindo-se em áreas operacionais e áreas de vivência (NB-1367).
O que buscamos com o estudo do canteiro de obras:
 Máximo aproveitamento de todos os recursos materiais e humanos empregados na
obra, qualquer que seja seu porte;
 Buscamos implantar o canteiro em local que permaneça o maior tempo possível,
pois, desmobilizações durante a obra causam muito transtorno;
 Canteiros de obras que deixam a desejar em termos de organização e segurança,
fazendo com que, longe de criarem uma imagem positiva das empresas no mercado,
recomendem distância aos clientes.
25
26
27
CANTEIRO DE OBRA - TIPOLOGIAS
28
Tipologia dos Canteiros de Obras: Restrito, Amplo e o Longos e estreitos.
Restrito: a maior parte do terreno está ocupado. Acessos restritos. Exemplos:
construções em áreas centrais, ampliações ou reformas.
29
Amplo: construção ocupa pequena parcela do terreno, tem fácil acesso e espaço
para armazenamento. Ex. Construções de plantas industriais, conjuntos
habitacionais horizontais, barragens ou hidrelétricas.
30
Longos e estreitos: restrito a uma dimensão e acesso feito por poucos pontos.
Exemplo: trabalhos em estrada de ferro e rodagem, redes de gás e petróleo, e
alguns casos de obras de edificações em zonas urbanas.
CANTEIRO DE OBRA - FASES
31
FASES DO CANTEIRO DE OBRAS
 INICIAL
INTERMEDIÁRIA
FINAL
O canteiro de obras vai sendo modificado ao longo da execução da obra, de
acordo com os serviços a serem executados.
Adaptação contínua do canteiro para alocar:
•Materiais;
•Equipamentos ;
•Mão de obra.
CANTEIRO DE OBRA - FASES
32
 INICIAL
Serviços que interferem com as áreas onde será implantado o canteiro:
•Movimentos de terra;
•Fundações
CANTEIRO DE OBRA - FASES
33
 INTERMEDIÁRIA
Grande volume de produção:
•Estrutura
•Alvenaria
•Instalações
CANTEIRO DE OBRA - FASES
34
 FINAL
Grande diversidade de serviços:
•Revestimento;
•Acabamento da obra.
CANTEIRO DE OBRA - ÁREAS
35
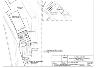
CANTEIRO DE OBRA - ELEMENTOS
36
CANTEIRO DE OBRA - ELEMENTOS
37
ÁREAS OPERACIONAIS
PORTARIA
• Junto à porta de acesso do pessoal;
• Suficientemente ampla para manter um estoque de EPI, a ser fornecido aos
visitantes;
• Deve ser localizada de modo que o vigia possa controlar os acessos da obra.
O encarregado da portaria deve:
• Anotar o nome e a identidade dos visitantes;
• Não permitir a entrada de visitantes sem os EPIs determinados pelas normas da
empresa;
• Consultar a administração ou gerência da obra, para autorização do acesso aos
visitantes.
CANTEIRO DE OBRA - ELEMENTOS
38
ÁREAS OPERACIONAIS
ESCRITÓRIO
• Compõem-se, geralmente, de dependências para os seguintes elementos da
administração da obra:
1) Engenheiros
2) Estagiários e Técnicos
3) Mestre de Obras
4) Auxiliares de escritório
5) Segurança do Trabalho
6) Ambulatório
7) Sanitários
8) Encarregados
CANTEIRO DE OBRA - ELEMENTOS
39
ÁREAS OPERACIONAIS
ALMOXARIFADO
• Preferencialmente separado dos escritórios, porém nas
suas proximidades;
• Mantido limpo e arrumado;
• Ficar próximo das entradas;
• Localizado de modo a permitir uma
fácil distribuição dos materiais pelo
canteiro.
CANTEIRO DE OBRA - ELEMENTOS
40
Áreas operacionais
CENTRAL DE ARGAMASSA
Localização:
• Proximidades do estoque de areia;
• Próximo ao equipamento para transporte vertical;
• De preferência em local coberto (para viabilizar trabalho mesmo com chuva);
• Cuidado com interferências com outros fluxos de material;
• N° de betoneiras é função da demanda da obra por argamassas (mesmo que a
obra só demande uma, é conveniente ter uma menor para caso de emergências);
• Verificar a viabilidade de utilização de argamassa industrializada ou estabilizada;
• Prever tablado para estoque dos sacos de aglomerante necessários para o dia de
trabalho.
Instalação em
desuso*!!!
CANTEIRO DE OBRA - ELEMENTOS
41
CENTRAL DE ARGAMASSA
NA VIDA REAL...
42
Novas tecnologias que reduzem custos
operacionais:
Argamassa estabilizada é
uma argamassa dosada em central úmida,
pronta para utilização. Dependendo de sua
composição, ela se mantém usável durante 24,
36 e 72 horas, e uma vez aplicada, seu
funcionamento é semelhante ao
das argamassas comuns.
Argamassas prontas e ensacadas:
CANTEIRO DE OBRA - ELEMENTOS
44
ÁREAS OPERACIONAIS
CENTRAL DE ARMAÇÃO
• Localizar o processamento do aço (pré-
montagem) nas proximidades do estoque
de aço e facilmente acessível quanto ao
transporte vertical;
• evitar contato com solo (britas + caibros
transversais);
• evitar estocagem sobre lajes
(sobrecarga);
• Cobertura seria o ideal, mas é obrigatória
apenas sobre eventual policorte.
45
NA VIDA REAL...
Instalação em
desuso!!!
Opte por receber
armado ou no
mínimo cortado e
dobrado.
Opte* pelo sistema Just in Time (produção por demanda).
CANTEIRO DE OBRA - ELEMENTOS
46
ÁREAS OPERACIONAIS
ESTOQUE DE AREIA
• próximo ao portão de materiais (obrigatoriamente, deve ser basculada
diretamente do caminhão);
• evitar contato direto com terreno, prover delimitação quanto às laterais;
• evitar carregamento pela chuva e contaminação com terra, entulho e outros
Materiais;
• altura máxima do estoque sobre o terreno da ordem de 1,5 m;
• não estocar sobre laje (sobrecarga).
CANTEIRO DE OBRA - ELEMENTOS
47
ÁREAS OPERACIONAIS
ESTOQUE DE SACOS DE CAL OU CIMENTO
• local fechado, próximo ao acesso de materiais (descarregamento sob
responsabilidade do fornecedor), isento de umidade;
• isolar os sacos do contato com o piso (estrados) e afastar das paredes do
ambiente;
• procurar induzir política de “primeiro a chegar = primeiro a usar”;
• pilhas com no máximo 10 sacos de altura;
• área é função da demanda (ordem de grandeza = 30 m2);
• Dica: se possível, estocar em container metálico.
48
49
50
CANTEIRO DE OBRA - ELEMENTOS
Opte pelo sistema Just in Time (produção por demanda).
CANTEIRO DE OBRA - NORMAS TÉCNICAS
51
DIRETRIZES QUANTO ÀS ÁREAS DE VIVÊNCIA
2 - Normas Técnicas:
- NR 18 - condições e meio ambiente do trabalho na indústria da
construção (ministério do trabalho) - Portaria SEPRT n.º 3733, que entrou em
vigor dia 10/02/2021;
- NBR 12284 (NB 1367) - áreas de vivência em canteiros de obras.
 É obrigatório a elaboração do – Programa de Gerenciamento de
Riscos – PGR
PPRA
PCMSO - Programa de Controle Médico de Saúde Ocupacional
PCMAT - Programa de Condições e meio Ambiente de Trabalho na Indústria de Construção.
PPRA - Programa de Prevenção de Riscos Ambientais
Programa de Gerenciamento de Riscos - PGR
Deve contemplar os riscos ocupacionais e as medidas
de prevenções;
O PGR deve ser elaborado por profissional legalmente
habilitado em segurança do trabalho e implementado
sob responsabilidade da organização;
Contemplar o projeto da área de vivência do canteiro
de obras;
Contemplar o projeto elétrico das instalações
temporárias, elaborado por profissional legalmente
habilitado;
Programa de Gerenciamento de Riscos - PGR
- Contemplar o projetos dos sistemas de proteção
coletiva elaborados por profissional legalmente
habilitado;
- Contemplar o Projetos dos Sistemas de Proteção
Individual Contra Quedas (SPIQ), quando aplicável,
elaborados por profissional legalmente habilitado;
- Relação dos Equipamentos de Proteção Individual (EPI)
e suas respectivas especificações técnicas, de acordo
com os riscos ocupacionais existentes.
PLANO DE GERENCIAMENTO DE RESÍDUOS DA
CONSTRUÇÃO CIVIL - PGRCC
57
CANTEIRO DE OBRA - NORMAS TÉCNICAS
18.1.1 Esta Norma Regulamentadora - NR estabelece diretrizes de ordem
administrativa, de planejamento e de organização, que objetivam a implementação
de medidas de controle e sistemas preventivos de segurança nos processos, nas
condições e no meio ambiente de trabalho na Indústria da Construção.
CANTEIRO DE OBRA - NORMAS TÉCNICAS
58
CANTEIRO DE OBRA - NORMAS TÉCNICAS
59
CANTEIRO DE OBRA - NORMAS TÉCNICAS
60
CANTEIRO DE OBRA - NORMAS TÉCNICAS
61
CANTEIRO DE OBRA - NORMAS TÉCNICAS
62
63
REFEITÓRIO
64
CANTEIRO DE OBRA - NORMAS TÉCNICAS
65
As instalações sanitárias devem:
a) ser mantidas em perfeito estado de conservação e higiene;
b) ter portas de acesso que impeçam o devassamento e ser construídas de modo
a manter o resguardo conveniente;
d) ter pisos e paredes impermeáveis, laváveis e de acabamento antiderrapante;
e) não se ligar diretamente com os locais destinados às refeições;
f) ser independente para homens e mulheres, quando necessário;
g) ter ventilação e iluminação adequadas;
h) ter instalações elétricas adequadamente protegidas;
i) ter pé-direito mínimo de 2,50m (dois metros e cinqüenta centímetros), ou
respeitando-se o que determina o Código de Obras do Município da obra;
j) estar situadas em locais de fácil e seguro acesso, não sendo permitido um
deslocamento superior a 150 (cento e cinqüenta) metros do posto de trabalho aos
gabinetes sanitários, mictórios e lavatórios.
CANTEIRO DE OBRA - NORMAS TÉCNICAS
66
A instalação sanitária deve ser constituída de lavatório, vaso sanitário e mictório, na
proporção de 1 (um) conjunto para cada grupo de 20 (vinte) trabalhadores ou
fração, bem como de chuveiro, na proporção de 1 (uma) unidade para cada grupo
de 10 (dez) trabalhadores ou fração.
Lavatórios
24.3.3 O lavatório poderá ser tipo individual, calha
ou de tampo coletivo com várias cubas, possuindo
torneiras, sendo que cada segmento de 0,60m
(sessenta centímetros) corresponde a uma unidade
para fins de dimensionamento do lavatório.
24.3.4 O lavatório deve ser provido de material ou
dispositivo para a limpeza, enxugo ou secagem das
mãos, proibindo-se o uso de toalhas coletivas.
CANTEIRO DE OBRA - NORMAS TÉCNICAS
67
24.3.1 Os compartimentos destinados as bacias sanitárias devem:
a) ser individuais;
b) ter divisórias com altura que mantenham seu interior indevassável com vão inferior
que facilite a limpeza e a ventilação (h=1,8m e vão do chão de 15cm);
c) ser dotados de portas independentes, providas de fecho que impeçam o
devassamento;
d) possuir papel higiênico com suporte e recipiente para descarte de papéis
higiênicos usados, quando não for permitido descarte na própria bacia sanitária,
devendo o recipiente possuir tampa quando for destinado às mulheres; e
e) possuir dimensões de acordo com o código de obras local ou, na ausência desse,
deve haver área livre de pelo menos 0,60m (sessenta centímetros) de diâmetro
entre a borda frontal da bacia sanitária e a porta fechada (área mínima de 1,2m x
0,60m).
Mictórios
24.3.2 Poderá ser disponibilizado mictório tipo individual ou calha coletiva, com
anteparo.
24.3.2.1 No mictório do tipo calha coletiva, cada segmento de, no mínimo, 0,60m
(sessenta centímetros), corresponderá a uma unidade para fins de
dimensionamento da calha.
24.3.2.2 No mictório do tipo calha coletiva, quando inexistir anteparo, cada
segmento de, no mínimo, 0,80m (oitenta centímetros), corresponderá a uma
unidade para fins de dimensionamento da calha.
24.3.2.3 Os mictórios devem ser construídos com material impermeável e mantidos
em condições de limpeza e higiene.
69
Chuveiros
24.3.5 Será exigido, para cada grupo de trabalhadores ou fração, 1 (um) chuveiro
para cada:
a) 10 (dez) trabalhadores, nas atividades laborais em que haja exposição e
manuseio de material infectante, substâncias tóxicas, irritantes ou
aerodispersóides, que impregnem a pele e roupas do trabalhador;
b) 20 (vinte) trabalhadores, nas atividades laborais em que haja contato com
substâncias que provoquem deposição de poeiras que impregnem a pele e as
roupas do trabalhador, ou que exijam esforço físico ou submetidas a condições
ambientais de calor intenso.
Aerodispersóides é uma dispersão de partículas sólidas ou líquidas no ar. Ou
seja, é uma espécie de mistura de substâncias sólidas ou líquidas com o ar que
respiramos.
Um exemplo de aerodispersóide é a poeira, que nada mais é que grãos de areias
espalhados, misturados com o ar que respiramos.
71
CANTEIRO DE OBRA - NORMAS TÉCNICAS
72
24.3.6 Os compartimentos destinados aos chuveiros devem:
a) ser individuais e mantidos em condição de conservação, limpeza e higiene;
b) ter portas de acesso que impeçam o devassamento; Novidade
c) dispor de chuveiro de água quente e fria;
d) ter piso e paredes revestidos de material impermeável e lavável;
e) dispor de suporte para sabonete e para toalha; e
f) possuir dimensões de acordo com o código de obras local ou, na ausência
desse, no mínimo 0,80m (oitenta centímetros) por 0,80m (oitenta centímetros).
OS CHUVEIROS DEVEM SER ATERRADOS ADEQUADAMENTE.
73
24.4 Vestiários
24.4.1 Todos os estabelecimentos devem ser dotados de vestiários quando:
a) a atividade exija a utilização de vestimentas de trabalho ou que seja imposto o uso de
uniforme cuja troca deva ser feita no próprio local de trabalho; ou
b) a atividade exija que o estabelecimento disponibilize chuveiro.
24.4.2 Os vestiários devem ser dimensionados em função do número de trabalhadores que
necessitam utilizá-los, até o limite de 750 (setecentos e cinquenta) trabalhadores, conforme
o seguinte cálculo: área mínima do vestiário por trabalhador = 1,5 - (nº de
trabalhadores/1000).
24.4.2.1 Em estabelecimentos com mais de 750 (setecentos e cinquenta) trabalhadores, os
vestiários devem ser dimensionados com área de, no mínimo, 0,75m² (setenta e cinco
decímetros quadrados) por trabalhador.
• Exemplo:
• Uma obra com 20 funcionários.
• 1,5 - ) = 1,48m²
• 1,48m² x 20 = 29,60m²
• É necessário um vestiário de no mínimo
29,60m².
24.4.3 Os vestiários devem:
a) ser mantidos em condição de conservação, limpeza e higiene;
b) ter piso e parede revestidos por material impermeável e lavável;
c) ser ventilados para o exterior ou com sistema de exaustão forçada (NR anterior prescrevia
1/10 de ventilação);
d) ter assentos em material lavável e impermeável em número compatível com o de
trabalhadores; e
e) dispor de armários individuais simples e/ou duplos com sistema de trancamento.
Devem ter bancos em número suficiente para atender aos usuários, com largura
mínima de 0,30m (trinta centímetros).
Armários
24.4.4 É admitido o uso rotativo de armários simples entre usuários, exceto nos casos em que
estes sejam utilizados para a guarda de Equipamentos de Proteção Individual - EPI e de
vestimentas expostas a material infectante, substâncias tóxicas, irritantes ou que provoquem
sujidade.
24.4.5 Nas atividades laborais em que haja exposição e manuseio de material infectante,
substâncias tóxicas, irritantes ou aerodispersóides, bem como naquelas em que haja contato
com substâncias que provoquem deposição de poeiras que impregnem a pele e as roupas do
trabalhador devem ser fornecidos armários de compartimentos duplos ou dois armários
simples.
24.4.5.1 Ficam dispensadas de disponibilizar 2 (dois) armários simples ou armário duplo as
organizações que promovam a higienização diária de vestimentas ou que forneçam vestimentas
descartáveis, assegurada a disponibilização de 1 (um) armário simples para guarda de roupas
comuns de uso pessoal do trabalhador.
24.4.6 Os armários simples devem ter tamanho suficiente para que o trabalhador guarde
suas roupas e acessórios de uso pessoal, não sendo admitidas dimensões inferiores a: 0,40m
(quarenta centímetros) de altura, 0,30m (trinta centímetros) de largura e 0,40m (quarenta
centímetros) de profundidade.
24.4.6.1 Nos armários de compartimentos duplos, não são admitidas dimensões inferiores
a:
a) 0,80m (oitenta centímetros) de altura por 0,30m (trinta centímetros) de largura e 0,40m
(quarenta centímetros) de profundidade, com separação ou prateleira, de modo que um
compartimento, com a altura de 0,40m (quarenta centímetros), se destine a abrigar a
roupa de uso comum e o outro compartimento, com altura de 0,40m (quarenta
centímetros) a guardar a roupa de trabalho; ou
b) 0,80m (oitenta centímetros) de altura por 0,50m (cinquenta centímetros) de largura e
0,40m (quarenta centímetros) de profundidade, com divisão no sentido vertical, de forma
que os compartimentos, com largura de 0,25m (vinte e cinco centímetros), estabeleçam,
rigorosamente, o isolamento das roupas de uso comum e de trabalho.
24.4.7 As empresas que oferecerem serviços de guarda volume para a guarda de roupas e
acessórios pessoais dos trabalhadores estão dispensadas de fornecer armários.
24.4.8 Nas empresas desobrigadas de manter vestiário, deve ser garantido o fornecimento de
escaninho, gaveta com tranca ou similar que permita a guarda individual de pertences pessoais
dos trabalhadores ou serviço de guarda-volume.
24.5 Locais para refeições
24.5.1 Os empregadores devem oferecer aos seus trabalhadores locais em condições de
conforto e higiene para tomada das refeições por ocasião dos intervalos concedidos durante a
jornada de trabalho.
24.5.1.1 É permitida a divisão dos trabalhadores do turno, em grupos para a tomada de
refeições, a fim de organizar o fluxo para o conforto dos usuários do refeitório,
garantido o intervalo para alimentação e repouso.
24.5.2 Os locais para tomada de refeições para atender até 30 (trinta) trabalhadores,
observado o subitem 24.5.1.1, devem:
a) ser destinados ou adaptados a este fim;
b) ser arejados e apresentar boas condições de conservação, limpeza e higiene; e
c) possuir assentos e mesas, balcões ou similares suficientes para todos os usuários atendidos.
24.5.2.1 A empresa deve garantir, nas proximidades do local para refeições:
a) meios para conservação e aquecimento das refeições;
b) local e material para lavagem de utensílios usados na refeição; e
c) água potável.
24.5.3 Os locais destinados às refeições para atender mais de 30 (trinta) trabalhadores,
conforme subitem 24.5.1.1, devem:
a) ser destinados a este fim e fora da área de trabalho;
b) ter pisos revestidos de material lavável e impermeável;
c) ter paredes pintadas ou revestidas com material lavável e impermeável;
d) possuir espaços para circulação;
e) ser ventilados para o exterior ou com sistema de exaustão forçada, salvo em
ambientes climatizados artificialmente;
f) possuir lavatórios instalados nas proximidades ou no próprio local, atendendo aos
requisitos do subitem 24.3.4;
g) possuir assentos e mesas com superfícies ou coberturas laváveis ou descartáveis, em
número correspondente aos usuários atendidos;
h) ter água potável disponível;
i) possuir condições de conservação, limpeza e higiene;
j) dispor de meios para aquecimento das refeições; e
k) possuir recipientes com tampa para descarte de restos alimentares e descartáveis.
24.5.4 Ficam dispensados das exigências do item 24.5 desta NR:
a) estabelecimentos comerciais bancários e atividades afins que interromperem suas
atividades por 2 (duas) horas, no período destinado às refeições;
b) estabelecimentos industriais localizados em cidades do interior, quando a empresa
mantiver vila operária ou residirem, seus trabalhadores, nas proximidades, permitindo
refeições nas próprias residências.
c) os estabelecimentos que oferecerem vale-refeição, desde que seja disponibilizado
condições para conservação e aquecimento da comida, bem como local para a tomada
das refeições pelos trabalhadores que trazem refeição de casa.
CANTEIRO DE OBRA - NORMAS TÉCNICAS
83
Alojamento
• ALOJAMENTO NA OBRA ESTÁ EM COMPLETO DESUSO;
• ULTIMAMENTE TEM SIDO CONSIDERADO TRABALHO ANÁLOGO À
ESCRAVIDÃO.
84
24.9 Disposições gerais
24.9.1 Em todos os locais de trabalho deverá ser fornecida aos trabalhadores água
potável, sendo proibido o uso de copos coletivos.
24.9.1.1 O fornecimento de água deve ser feito por meio de bebedouros na proporção de,
no mínimo, 1 (um) para cada grupo de 50 (cinquenta) trabalhadores ou fração, ou outro
sistema que ofereça as mesmas condições.
24.9.1.2 Quando não for possível obter água potável corrente, esta deverá ser fornecida em
recipientes portáteis próprios e hermeticamente fechados.
24.9.2 Os locais de armazenamento de água potável devem passar periodicamente por limpeza,
higienização e manutenção, em conformidade com a legislação local.
24.9.3 Deve ser realizada periodicamente análise de potabilidade da água dos reservatórios
para verificar sua qualidade, em conformidade com a legislação.
85
24.9.7 Todos os ambientes previstos nesta norma devem ser construídos de acordo com
o código de obras local, devendo:
a) ter cobertura adequada e resistente, que proteja contra intempéries;
b) ter paredes construídas de material resistente;
c) ter pisos de material compatível com o uso e a circulação de pessoas;
d) possuir iluminação que proporcione segurança contra acidentes.
24.9.7.1 Na ausência de código de obra local, deve ser garantido pé direito mínimo de
2,50 m (dois metros e cinquenta centímetros), exceto nos quartos de dormitórios com
beliche, cuja medida mínima será de 3,00 m (três metros).
24.9.7.2 As instalações elétricas devem ser protegidas para evitar choques elétricos.
24.9.8 Devem ser garantidas condições para que os trabalhadores possam interromper
suas atividades para utilização das instalações sanitárias.
24.9.9 Em edificações com diversos estabelecimentos, todas as instalações previstas nesta
NR podem ser atendidas coletivamente por grupo de empregadores ou pelo condomínio,
mantendo-se o empregador como o responsável pela disponibilização das instalações.
24.9.9.1 O dimensionamento deve ser feito com base no maior número de trabalhadores
por turno.
87
CANTEIRO DE OBRA – EXEMPLO
DADOS RETIRADOS DO
PCMAT DA EMPRESA
(NR18 válida até 02/2021).
88
CANTEIRO DE OBRA – EXEMPLO
89
CANTEIRO DE OBRA – EXEMPLO
90
CANTEIRO DE OBRA – EXEMPLOS
Instalações Provisórias Iniciais e Finais
Nas fases de ajustes o canteiro de obras deverá ter instalações mínimas a fim de
atender às necessidades básicas dos operários dessas fases.
Essas instalações estão constituídas por 10 prédios térreos construídos em
bloco cerâmico, sendo assim distribuídos:
• 01 sanitário masculino com 21 vasos sanitários, 01 mictório coletivo e 01 lavatório
coletivo com 05 torneiras; 01 vestiário masculino com 40 chuveiros, 01 mictório
coletivo, 01 lavatório com 03 torneiras e armários;
• 01 vestiário / sanitário feminino, com 01 lavatório com 01 torneira, 03 vasos
sanitários, 06 chuveiros e armários metálicos;
• 01 refeitório operacional com mesas e bancos em madeira, 02 bebedouros e 01
lavatório com 07 torneiras;
• 01 depósito com repartições para 20 empreiteiros;
• 01 depósito para instalações hidráulicas com bancada e 01 para instalações
elétricas com bancada (anexos);
91
CANTEIRO DE OBRA – EXEMPLOS
• 01 almoxarifado com sala administrativa para controle de estoque e suprimentos;
• 01 refeitório administrativo com mesa e bancos de madeira;
• 01 dependência para escritório de engenharia, envolvendo salas para gerencia,
planejamento, medição, qualidade/ meio ambiente, departamento pessoal e
administrativo, sala de reuniões e sanitários masculino e feminino; 01 dependência
sendo salas para refeitório administrativo, segurança do trabalho com estoque de
EPIs, sala médica e sanitários/ vestiários masculino e feminino. Há também 01
prédio construído em madeirite que abriga o almoxarifado e suprimentos.
• O cimento, fornecido em sacarias será estocado em container metálico.
As instalações de máquinas, equipamentos e quadros de distribuição elétrica
deverão ser feitas em local separado das áreas de circulação de pessoas não
habilitadas para lidar com essas instalações.
92
CANTEIRO DE OBRA – EXEMPLOS
93
CANTEIRO DE OBRA – EXEMPLOS
94
Exercício 01 (valor: 20 pontos):
 DIMENSIONE A ÁREA DE VIVÊNCIA PARA UMA OBRA COM:
• 20 FUNCIONÁRIOS;
• 80 FUNCIONÁRIOS ;
• 200 FUNCIONÁRIOS.
95
CANTEIRO DE OBRA – EXERCÍCIOS
• https://sites.google.com/site/posunipmbagoe/arquivo-aulas
• https://www.marilia.unesp.br/#!/cipa/mapa-de-risco/01---cores-usadas-no-mapa-de-risco/
• https://www.getwet.com.br/mapas-de-riscos/#Modelo_de_Mapa_de_risco_pronto_para_download
• https://segurancadotrabalhonwn.com/como-fazer-mapa-de-risco/
• https://docs.google.com/viewer?a=v&pid=sites&srcid=ZGVmYXVsdGRvbWFpbnxwb3N1bmlwbWJhZ29lfGd4OjEw
N2M5NWU3ZjAwOGE3MDc
• https://spotcursos.com.br/blogs/patologia-da-construcao/posts/laudo-cautelar-de-
vizinhanca?utm_campaign=blog_de_patologia__laudo_de_vizinhanca&utm_medium=email&utm_source=RD+Sta
tion
• https://spotcursos.com.br/blogs/patologia-da-construcao/posts/laudo-cautelar-de-vizinhança;
• Vistorias na construção civil. Ed. Pini;
• Logística Aplicada à Construção Civil. Ed. Pini;
• Como Reduzir Perdas nos Canteiros | Ubiraci Espinelli Lemes. Ed. Pini;
• Como Aumentar a Eficiência da Mão-de-obra. Ed. Pini;
• Alternativas Tecnológicas para Edificações - Volume 1. Ed. Pini;
• Perícias de Engenharia – A Apuração Dos Fatos | Simone Feigelson Deutsch. Ed. Leud.
Referências
Gerenciamento de Canteiro de obras.
Prof. MSc. Giovani Laquini
Parte 03
Tecnologia, Gestão e desempenho das Construções
98
CANTEIRO DE OBRA – CONSTRUÇÃO ENXUTA
• O termo lean construction (construção enxuta), foi criado e desenvolvido pelo
finlandês Lauri Koskela em 1992, adaptado do sistema de produção enxuta que
surgiu no Japão na década de 1950, desenvolvida pelo Sistema Toyota de Produção
(STP) de Taichi Ohno. A construção enxuta é conhecida como um novo referencial
teórico instituído para a gestão de processos na construção, baseando em 11
princípios.
• É uma Filosofia de Trabalho, que assenta na implementação de um conjunto de
metodologias, ferramentas, processos, atividades e ações cooperativas, que
permitem reduzir os desperdícios durante a fase de projeto e execução de uma
obra, maximizando, dessa forma, o valor para o cliente final.
•A Construção Enxuta, conhecida como Lean Construction pretende garantir:
- Processos corretos;
- Ferramentas apropriadas;
- Recursos corretos.
99
OBJETIVOS DA CONSTRUÇÃO ENXUTA:
• Reduzir Desperdícios;
• Aumentar a Produtividade durante a Execução de uma Obra;
• Aumentar a Qualidade da Construção;
• Flexibilizar os Requisitos;
• Reduzir Custos;
• Incrementa a Satisfação do Cliente.
CANTEIRO DE OBRA – CONSTRUÇÃO ENXUTA
100
CANTEIRO DE OBRA – CONSTRUÇÃO ENXUTA
A abordagem enxuta na construção civil visa seqüenciar as atividades de modo
integrado, planejando as atividades de forma balanceada, ou seja, atividades
cadenciadas e no mesmo ritmo. A conseqüência deste tipo de solução é fazer com
que haja a quebra de isolamento da seqüencia de atividades na obra.
A aplicação da construção enxuta no canteiro de obra pode ser verificada:
• Na elaboração do layout do canteiro, visando reduções de grandes deslocamentos
de materiais, equipamentos e produtos, interferindo assim no prazo de execução do
empreendimento;
• Na limpeza e organização do canteiro, facilitando movimentação e visualização
geral;
• Na logística de armazenamento de materiais;
• No fluxo de pessoas, materiais e equipamentos.

Aula 01 - Canteiro de Obras

  • 1.
    Gerenciamento de Canteirode obras. Prof. MSc. Giovani Laquini Parte 01 Tecnologia, Gestão e Desempenho das Construções
  • 2.
    2 Engenharia Civil (UFMG) “Engenhariade obra”  MBA Gestão de projetos (FGV) O problema na construção civil: infiltrações recorrentes Mestrado – Recorrência de patologias / Ergonomia Perícia Judicial Vistoria / Avaliação Imobiliária Consultoria Apresentação – Prof. Giovani Laquini
  • 3.
    3 Nome Formação Experiência profissional Área deatuação Qual sua expectativa com o título de especialista? Apresentação – Alunos
  • 4.
    4 1 - Canteirode Obras: - Conceitos e definições; - Tipologias e exemplos. 2 - Normas Técnicas: - NR 18 - condições e meio ambiente do trabalho na indústria da construção (ministério do trabalho); - NBR 12284 (NB-1367) - áreas de vivência em canteiros de obras. 3 - Construção Enxuta (Lean Construction): - Conceitos e definições; - Os 11 princípios da Construção Enxuta; - A logística na Construção Enxuta; Ementa
  • 5.
    5 - Planejandoe executando o Layout do Canteiro de Obras: - Forma de descarga no canteiro; - Transportes internos; - Modos de armazenagem; - Modos de aplicação; - Geração de resíduos na aplicação; - Consumo de água, energia elétrica e combustível. 6 - Gerenciando o Canteiro de Obras - PDCA; -Gestão de pessoas e desempenho organizacional (maximizando o desempenho do Engenheiro na obra através da postura, delegando atribuições, controlando a equipe e gerenciamento de conflitos). 7 - Outras considerações: - Containers; - Pré-fabricado; - Aproveitamento de edificações anteriores; - Convencional, com sistema de vedações racionalizado e desmontável.5
  • 6.
    Gerenciamento de Canteirode obras. Prof. MSc. Giovani Laquini Parte 01 Tecnologia, Gestão e Desempenho das Construções
  • 7.
  • 8.
    O QUE DEVEMOSFAZER ANTES DE INICIAR UMA OBRA? As primeiras coisas que precisamos fazer antes de começar uma obra é analisar a região e conhecer o terreno, necessitando ainda de: - Realizar Vistoria Cautelar nas vizinhanças; - Elaborar uma curva ABC de insumos para o dimensionamento do efetivo da obra; - Fazer a Comunicação Prévia ao Mistério do Trabalho;
  • 9.
    - Conferir asmedidas do terreno; - Avaliar a situação dos volumes de cortes e aterros; - Avaliar as condições para as ligações provisórias de energia, da água e do esgoto e dimensionar a fossa séptica (se for o caso); - Dimensionar o exaustor da cozinha (se for o caso); - Avaliar o volume dos materiais a serem estocados no canteiro (ex. areia, brita, cimento, aço, etc).
  • 10.
  • 11.
  • 18.
    Gerenciamento de Canteirode obras. Prof. MSc. Giovani Laquini Parte 01 Tecnologia, Gestão e Desempenho das Construções
  • 19.
    As instalações elétricasdevem possuir sistema de aterramento elétrico de proteção e devem ser submetidas a inspeções e medições elétricas periódicas, com emissão dos respectivos laudos por profissional legalmente habilitado, em conformidade com o projeto das instalações elétricas temporárias e com as normas técnicas nacionais vigentes. É obrigatória a utilização do dispositivo Diferencial Residual (DR), como medida de segurança adicional nas instalações elétricas, nas situações previstas nas normas técnicas nacionais vigentes. INSTALAÇÕES ELÉTRICAS PROVISÓRIA
  • 20.
    Os quadros dedistribuição devem ficar em locais bem visíveis, sinalizados e de fácil acesso, mas longe da passagem de pessoas, materiais e equipamentos; Os fios e cabos devem ser estendidos em lugares que não atrapalhem a passagem de pessoas, máquinas e materiais, e serem protegidos por calhas de madeira, canaletas ou eletrodutos e a uma altura que não deixe as pessoas e máquinas encostarem neles. INSTALAÇÕES ELÉTRICAS PROVISÓRIA
  • 21.
    Deverá ser providenciada aligação de água e construído o abrigo para o cavalete (entrada / registro/ pena d’água) e respectivo hidrômetro (se previsto). Não existindo água, deve- se providenciar abertura de poço de água, com os seguintes cuidados: INSTALAÇÕES HIDROSANITÁRIAS PROVISÓRIA
  • 22.
    a) que asinstalações estejam distantes dos alicerces e em local de pouco trânsito; b) que as fossas sépticas e sumidouros estejam distantes da rede hidráulica, a mais de 15 metros de distância; c) Providenciar junto ao órgão competente a outorga de direito de uso de recursos hídricos. Ex. IGAM (http://igam.mg.gov.br/outorga/formulários) INSTALAÇÕES HIDROSANITÁRIAS PROVISÓRIA
  • 23.
    Gerenciamento de Canteirode obras. Prof. MSc. Giovani Laquini Parte 02 Tecnologia, Gestão e Desempenho das Construções
  • 25.
    CANTEIRO DE OBRA- CONCEITOS O canteiro de obras pode ser definido como:  “área de trabalho fixa e temporária, onde se desenvolvem operações de apoio e execução de uma obra” (NR-18);  o conjunto de “áreas destinadas à execução e apoio dos trabalhos da indústria da construção, dividindo-se em áreas operacionais e áreas de vivência (NB-1367). O que buscamos com o estudo do canteiro de obras:  Máximo aproveitamento de todos os recursos materiais e humanos empregados na obra, qualquer que seja seu porte;  Buscamos implantar o canteiro em local que permaneça o maior tempo possível, pois, desmobilizações durante a obra causam muito transtorno;  Canteiros de obras que deixam a desejar em termos de organização e segurança, fazendo com que, longe de criarem uma imagem positiva das empresas no mercado, recomendem distância aos clientes. 25
  • 26.
  • 27.
  • 28.
    CANTEIRO DE OBRA- TIPOLOGIAS 28 Tipologia dos Canteiros de Obras: Restrito, Amplo e o Longos e estreitos. Restrito: a maior parte do terreno está ocupado. Acessos restritos. Exemplos: construções em áreas centrais, ampliações ou reformas.
  • 29.
    29 Amplo: construção ocupapequena parcela do terreno, tem fácil acesso e espaço para armazenamento. Ex. Construções de plantas industriais, conjuntos habitacionais horizontais, barragens ou hidrelétricas.
  • 30.
    30 Longos e estreitos:restrito a uma dimensão e acesso feito por poucos pontos. Exemplo: trabalhos em estrada de ferro e rodagem, redes de gás e petróleo, e alguns casos de obras de edificações em zonas urbanas.
  • 31.
    CANTEIRO DE OBRA- FASES 31 FASES DO CANTEIRO DE OBRAS  INICIAL INTERMEDIÁRIA FINAL O canteiro de obras vai sendo modificado ao longo da execução da obra, de acordo com os serviços a serem executados. Adaptação contínua do canteiro para alocar: •Materiais; •Equipamentos ; •Mão de obra.
  • 32.
    CANTEIRO DE OBRA- FASES 32  INICIAL Serviços que interferem com as áreas onde será implantado o canteiro: •Movimentos de terra; •Fundações
  • 33.
    CANTEIRO DE OBRA- FASES 33  INTERMEDIÁRIA Grande volume de produção: •Estrutura •Alvenaria •Instalações
  • 34.
    CANTEIRO DE OBRA- FASES 34  FINAL Grande diversidade de serviços: •Revestimento; •Acabamento da obra.
  • 35.
    CANTEIRO DE OBRA- ÁREAS 35
  • 36.
    CANTEIRO DE OBRA- ELEMENTOS 36
  • 37.
    CANTEIRO DE OBRA- ELEMENTOS 37 ÁREAS OPERACIONAIS PORTARIA • Junto à porta de acesso do pessoal; • Suficientemente ampla para manter um estoque de EPI, a ser fornecido aos visitantes; • Deve ser localizada de modo que o vigia possa controlar os acessos da obra. O encarregado da portaria deve: • Anotar o nome e a identidade dos visitantes; • Não permitir a entrada de visitantes sem os EPIs determinados pelas normas da empresa; • Consultar a administração ou gerência da obra, para autorização do acesso aos visitantes.
  • 38.
    CANTEIRO DE OBRA- ELEMENTOS 38 ÁREAS OPERACIONAIS ESCRITÓRIO • Compõem-se, geralmente, de dependências para os seguintes elementos da administração da obra: 1) Engenheiros 2) Estagiários e Técnicos 3) Mestre de Obras 4) Auxiliares de escritório 5) Segurança do Trabalho 6) Ambulatório 7) Sanitários 8) Encarregados
  • 39.
    CANTEIRO DE OBRA- ELEMENTOS 39 ÁREAS OPERACIONAIS ALMOXARIFADO • Preferencialmente separado dos escritórios, porém nas suas proximidades; • Mantido limpo e arrumado; • Ficar próximo das entradas; • Localizado de modo a permitir uma fácil distribuição dos materiais pelo canteiro.
  • 40.
    CANTEIRO DE OBRA- ELEMENTOS 40 Áreas operacionais CENTRAL DE ARGAMASSA Localização: • Proximidades do estoque de areia; • Próximo ao equipamento para transporte vertical; • De preferência em local coberto (para viabilizar trabalho mesmo com chuva); • Cuidado com interferências com outros fluxos de material; • N° de betoneiras é função da demanda da obra por argamassas (mesmo que a obra só demande uma, é conveniente ter uma menor para caso de emergências); • Verificar a viabilidade de utilização de argamassa industrializada ou estabilizada; • Prever tablado para estoque dos sacos de aglomerante necessários para o dia de trabalho. Instalação em desuso*!!!
  • 41.
    CANTEIRO DE OBRA- ELEMENTOS 41 CENTRAL DE ARGAMASSA
  • 42.
  • 43.
    Novas tecnologias quereduzem custos operacionais: Argamassa estabilizada é uma argamassa dosada em central úmida, pronta para utilização. Dependendo de sua composição, ela se mantém usável durante 24, 36 e 72 horas, e uma vez aplicada, seu funcionamento é semelhante ao das argamassas comuns. Argamassas prontas e ensacadas:
  • 44.
    CANTEIRO DE OBRA- ELEMENTOS 44 ÁREAS OPERACIONAIS CENTRAL DE ARMAÇÃO • Localizar o processamento do aço (pré- montagem) nas proximidades do estoque de aço e facilmente acessível quanto ao transporte vertical; • evitar contato com solo (britas + caibros transversais); • evitar estocagem sobre lajes (sobrecarga); • Cobertura seria o ideal, mas é obrigatória apenas sobre eventual policorte.
  • 45.
    45 NA VIDA REAL... Instalaçãoem desuso!!! Opte por receber armado ou no mínimo cortado e dobrado. Opte* pelo sistema Just in Time (produção por demanda).
  • 46.
    CANTEIRO DE OBRA- ELEMENTOS 46 ÁREAS OPERACIONAIS ESTOQUE DE AREIA • próximo ao portão de materiais (obrigatoriamente, deve ser basculada diretamente do caminhão); • evitar contato direto com terreno, prover delimitação quanto às laterais; • evitar carregamento pela chuva e contaminação com terra, entulho e outros Materiais; • altura máxima do estoque sobre o terreno da ordem de 1,5 m; • não estocar sobre laje (sobrecarga).
  • 47.
    CANTEIRO DE OBRA- ELEMENTOS 47 ÁREAS OPERACIONAIS ESTOQUE DE SACOS DE CAL OU CIMENTO • local fechado, próximo ao acesso de materiais (descarregamento sob responsabilidade do fornecedor), isento de umidade; • isolar os sacos do contato com o piso (estrados) e afastar das paredes do ambiente; • procurar induzir política de “primeiro a chegar = primeiro a usar”; • pilhas com no máximo 10 sacos de altura; • área é função da demanda (ordem de grandeza = 30 m2); • Dica: se possível, estocar em container metálico.
  • 48.
  • 49.
  • 50.
    50 CANTEIRO DE OBRA- ELEMENTOS Opte pelo sistema Just in Time (produção por demanda).
  • 51.
    CANTEIRO DE OBRA- NORMAS TÉCNICAS 51 DIRETRIZES QUANTO ÀS ÁREAS DE VIVÊNCIA 2 - Normas Técnicas: - NR 18 - condições e meio ambiente do trabalho na indústria da construção (ministério do trabalho) - Portaria SEPRT n.º 3733, que entrou em vigor dia 10/02/2021; - NBR 12284 (NB 1367) - áreas de vivência em canteiros de obras.
  • 52.
     É obrigatórioa elaboração do – Programa de Gerenciamento de Riscos – PGR PPRA PCMSO - Programa de Controle Médico de Saúde Ocupacional PCMAT - Programa de Condições e meio Ambiente de Trabalho na Indústria de Construção. PPRA - Programa de Prevenção de Riscos Ambientais
  • 53.
    Programa de Gerenciamentode Riscos - PGR Deve contemplar os riscos ocupacionais e as medidas de prevenções; O PGR deve ser elaborado por profissional legalmente habilitado em segurança do trabalho e implementado sob responsabilidade da organização; Contemplar o projeto da área de vivência do canteiro de obras; Contemplar o projeto elétrico das instalações temporárias, elaborado por profissional legalmente habilitado;
  • 54.
    Programa de Gerenciamentode Riscos - PGR - Contemplar o projetos dos sistemas de proteção coletiva elaborados por profissional legalmente habilitado; - Contemplar o Projetos dos Sistemas de Proteção Individual Contra Quedas (SPIQ), quando aplicável, elaborados por profissional legalmente habilitado; - Relação dos Equipamentos de Proteção Individual (EPI) e suas respectivas especificações técnicas, de acordo com os riscos ocupacionais existentes.
  • 55.
    PLANO DE GERENCIAMENTODE RESÍDUOS DA CONSTRUÇÃO CIVIL - PGRCC
  • 57.
    57 CANTEIRO DE OBRA- NORMAS TÉCNICAS 18.1.1 Esta Norma Regulamentadora - NR estabelece diretrizes de ordem administrativa, de planejamento e de organização, que objetivam a implementação de medidas de controle e sistemas preventivos de segurança nos processos, nas condições e no meio ambiente de trabalho na Indústria da Construção.
  • 58.
    CANTEIRO DE OBRA- NORMAS TÉCNICAS 58
  • 59.
    CANTEIRO DE OBRA- NORMAS TÉCNICAS 59
  • 60.
    CANTEIRO DE OBRA- NORMAS TÉCNICAS 60
  • 61.
    CANTEIRO DE OBRA- NORMAS TÉCNICAS 61
  • 62.
    CANTEIRO DE OBRA- NORMAS TÉCNICAS 62
  • 63.
  • 64.
  • 65.
    CANTEIRO DE OBRA- NORMAS TÉCNICAS 65 As instalações sanitárias devem: a) ser mantidas em perfeito estado de conservação e higiene; b) ter portas de acesso que impeçam o devassamento e ser construídas de modo a manter o resguardo conveniente; d) ter pisos e paredes impermeáveis, laváveis e de acabamento antiderrapante; e) não se ligar diretamente com os locais destinados às refeições; f) ser independente para homens e mulheres, quando necessário; g) ter ventilação e iluminação adequadas; h) ter instalações elétricas adequadamente protegidas; i) ter pé-direito mínimo de 2,50m (dois metros e cinqüenta centímetros), ou respeitando-se o que determina o Código de Obras do Município da obra; j) estar situadas em locais de fácil e seguro acesso, não sendo permitido um deslocamento superior a 150 (cento e cinqüenta) metros do posto de trabalho aos gabinetes sanitários, mictórios e lavatórios.
  • 66.
    CANTEIRO DE OBRA- NORMAS TÉCNICAS 66 A instalação sanitária deve ser constituída de lavatório, vaso sanitário e mictório, na proporção de 1 (um) conjunto para cada grupo de 20 (vinte) trabalhadores ou fração, bem como de chuveiro, na proporção de 1 (uma) unidade para cada grupo de 10 (dez) trabalhadores ou fração. Lavatórios 24.3.3 O lavatório poderá ser tipo individual, calha ou de tampo coletivo com várias cubas, possuindo torneiras, sendo que cada segmento de 0,60m (sessenta centímetros) corresponde a uma unidade para fins de dimensionamento do lavatório. 24.3.4 O lavatório deve ser provido de material ou dispositivo para a limpeza, enxugo ou secagem das mãos, proibindo-se o uso de toalhas coletivas.
  • 67.
    CANTEIRO DE OBRA- NORMAS TÉCNICAS 67 24.3.1 Os compartimentos destinados as bacias sanitárias devem: a) ser individuais; b) ter divisórias com altura que mantenham seu interior indevassável com vão inferior que facilite a limpeza e a ventilação (h=1,8m e vão do chão de 15cm); c) ser dotados de portas independentes, providas de fecho que impeçam o devassamento; d) possuir papel higiênico com suporte e recipiente para descarte de papéis higiênicos usados, quando não for permitido descarte na própria bacia sanitária, devendo o recipiente possuir tampa quando for destinado às mulheres; e e) possuir dimensões de acordo com o código de obras local ou, na ausência desse, deve haver área livre de pelo menos 0,60m (sessenta centímetros) de diâmetro entre a borda frontal da bacia sanitária e a porta fechada (área mínima de 1,2m x 0,60m).
  • 68.
    Mictórios 24.3.2 Poderá serdisponibilizado mictório tipo individual ou calha coletiva, com anteparo. 24.3.2.1 No mictório do tipo calha coletiva, cada segmento de, no mínimo, 0,60m (sessenta centímetros), corresponderá a uma unidade para fins de dimensionamento da calha. 24.3.2.2 No mictório do tipo calha coletiva, quando inexistir anteparo, cada segmento de, no mínimo, 0,80m (oitenta centímetros), corresponderá a uma unidade para fins de dimensionamento da calha. 24.3.2.3 Os mictórios devem ser construídos com material impermeável e mantidos em condições de limpeza e higiene.
  • 69.
    69 Chuveiros 24.3.5 Será exigido,para cada grupo de trabalhadores ou fração, 1 (um) chuveiro para cada: a) 10 (dez) trabalhadores, nas atividades laborais em que haja exposição e manuseio de material infectante, substâncias tóxicas, irritantes ou aerodispersóides, que impregnem a pele e roupas do trabalhador; b) 20 (vinte) trabalhadores, nas atividades laborais em que haja contato com substâncias que provoquem deposição de poeiras que impregnem a pele e as roupas do trabalhador, ou que exijam esforço físico ou submetidas a condições ambientais de calor intenso.
  • 70.
    Aerodispersóides é umadispersão de partículas sólidas ou líquidas no ar. Ou seja, é uma espécie de mistura de substâncias sólidas ou líquidas com o ar que respiramos. Um exemplo de aerodispersóide é a poeira, que nada mais é que grãos de areias espalhados, misturados com o ar que respiramos.
  • 71.
  • 72.
    CANTEIRO DE OBRA- NORMAS TÉCNICAS 72 24.3.6 Os compartimentos destinados aos chuveiros devem: a) ser individuais e mantidos em condição de conservação, limpeza e higiene; b) ter portas de acesso que impeçam o devassamento; Novidade c) dispor de chuveiro de água quente e fria; d) ter piso e paredes revestidos de material impermeável e lavável; e) dispor de suporte para sabonete e para toalha; e f) possuir dimensões de acordo com o código de obras local ou, na ausência desse, no mínimo 0,80m (oitenta centímetros) por 0,80m (oitenta centímetros). OS CHUVEIROS DEVEM SER ATERRADOS ADEQUADAMENTE.
  • 73.
  • 74.
    24.4 Vestiários 24.4.1 Todosos estabelecimentos devem ser dotados de vestiários quando: a) a atividade exija a utilização de vestimentas de trabalho ou que seja imposto o uso de uniforme cuja troca deva ser feita no próprio local de trabalho; ou b) a atividade exija que o estabelecimento disponibilize chuveiro. 24.4.2 Os vestiários devem ser dimensionados em função do número de trabalhadores que necessitam utilizá-los, até o limite de 750 (setecentos e cinquenta) trabalhadores, conforme o seguinte cálculo: área mínima do vestiário por trabalhador = 1,5 - (nº de trabalhadores/1000). 24.4.2.1 Em estabelecimentos com mais de 750 (setecentos e cinquenta) trabalhadores, os vestiários devem ser dimensionados com área de, no mínimo, 0,75m² (setenta e cinco decímetros quadrados) por trabalhador.
  • 75.
    • Exemplo: • Umaobra com 20 funcionários. • 1,5 - ) = 1,48m² • 1,48m² x 20 = 29,60m² • É necessário um vestiário de no mínimo 29,60m².
  • 76.
    24.4.3 Os vestiáriosdevem: a) ser mantidos em condição de conservação, limpeza e higiene; b) ter piso e parede revestidos por material impermeável e lavável; c) ser ventilados para o exterior ou com sistema de exaustão forçada (NR anterior prescrevia 1/10 de ventilação); d) ter assentos em material lavável e impermeável em número compatível com o de trabalhadores; e e) dispor de armários individuais simples e/ou duplos com sistema de trancamento. Devem ter bancos em número suficiente para atender aos usuários, com largura mínima de 0,30m (trinta centímetros).
  • 77.
    Armários 24.4.4 É admitidoo uso rotativo de armários simples entre usuários, exceto nos casos em que estes sejam utilizados para a guarda de Equipamentos de Proteção Individual - EPI e de vestimentas expostas a material infectante, substâncias tóxicas, irritantes ou que provoquem sujidade. 24.4.5 Nas atividades laborais em que haja exposição e manuseio de material infectante, substâncias tóxicas, irritantes ou aerodispersóides, bem como naquelas em que haja contato com substâncias que provoquem deposição de poeiras que impregnem a pele e as roupas do trabalhador devem ser fornecidos armários de compartimentos duplos ou dois armários simples. 24.4.5.1 Ficam dispensadas de disponibilizar 2 (dois) armários simples ou armário duplo as organizações que promovam a higienização diária de vestimentas ou que forneçam vestimentas descartáveis, assegurada a disponibilização de 1 (um) armário simples para guarda de roupas comuns de uso pessoal do trabalhador. 24.4.6 Os armários simples devem ter tamanho suficiente para que o trabalhador guarde suas roupas e acessórios de uso pessoal, não sendo admitidas dimensões inferiores a: 0,40m (quarenta centímetros) de altura, 0,30m (trinta centímetros) de largura e 0,40m (quarenta centímetros) de profundidade.
  • 78.
    24.4.6.1 Nos armáriosde compartimentos duplos, não são admitidas dimensões inferiores a: a) 0,80m (oitenta centímetros) de altura por 0,30m (trinta centímetros) de largura e 0,40m (quarenta centímetros) de profundidade, com separação ou prateleira, de modo que um compartimento, com a altura de 0,40m (quarenta centímetros), se destine a abrigar a roupa de uso comum e o outro compartimento, com altura de 0,40m (quarenta centímetros) a guardar a roupa de trabalho; ou b) 0,80m (oitenta centímetros) de altura por 0,50m (cinquenta centímetros) de largura e 0,40m (quarenta centímetros) de profundidade, com divisão no sentido vertical, de forma que os compartimentos, com largura de 0,25m (vinte e cinco centímetros), estabeleçam, rigorosamente, o isolamento das roupas de uso comum e de trabalho. 24.4.7 As empresas que oferecerem serviços de guarda volume para a guarda de roupas e acessórios pessoais dos trabalhadores estão dispensadas de fornecer armários. 24.4.8 Nas empresas desobrigadas de manter vestiário, deve ser garantido o fornecimento de escaninho, gaveta com tranca ou similar que permita a guarda individual de pertences pessoais dos trabalhadores ou serviço de guarda-volume.
  • 79.
    24.5 Locais pararefeições 24.5.1 Os empregadores devem oferecer aos seus trabalhadores locais em condições de conforto e higiene para tomada das refeições por ocasião dos intervalos concedidos durante a jornada de trabalho. 24.5.1.1 É permitida a divisão dos trabalhadores do turno, em grupos para a tomada de refeições, a fim de organizar o fluxo para o conforto dos usuários do refeitório, garantido o intervalo para alimentação e repouso. 24.5.2 Os locais para tomada de refeições para atender até 30 (trinta) trabalhadores, observado o subitem 24.5.1.1, devem: a) ser destinados ou adaptados a este fim; b) ser arejados e apresentar boas condições de conservação, limpeza e higiene; e c) possuir assentos e mesas, balcões ou similares suficientes para todos os usuários atendidos.
  • 80.
    24.5.2.1 A empresadeve garantir, nas proximidades do local para refeições: a) meios para conservação e aquecimento das refeições; b) local e material para lavagem de utensílios usados na refeição; e c) água potável. 24.5.3 Os locais destinados às refeições para atender mais de 30 (trinta) trabalhadores, conforme subitem 24.5.1.1, devem: a) ser destinados a este fim e fora da área de trabalho; b) ter pisos revestidos de material lavável e impermeável; c) ter paredes pintadas ou revestidas com material lavável e impermeável; d) possuir espaços para circulação; e) ser ventilados para o exterior ou com sistema de exaustão forçada, salvo em ambientes climatizados artificialmente;
  • 81.
    f) possuir lavatóriosinstalados nas proximidades ou no próprio local, atendendo aos requisitos do subitem 24.3.4; g) possuir assentos e mesas com superfícies ou coberturas laváveis ou descartáveis, em número correspondente aos usuários atendidos; h) ter água potável disponível; i) possuir condições de conservação, limpeza e higiene; j) dispor de meios para aquecimento das refeições; e k) possuir recipientes com tampa para descarte de restos alimentares e descartáveis.
  • 82.
    24.5.4 Ficam dispensadosdas exigências do item 24.5 desta NR: a) estabelecimentos comerciais bancários e atividades afins que interromperem suas atividades por 2 (duas) horas, no período destinado às refeições; b) estabelecimentos industriais localizados em cidades do interior, quando a empresa mantiver vila operária ou residirem, seus trabalhadores, nas proximidades, permitindo refeições nas próprias residências. c) os estabelecimentos que oferecerem vale-refeição, desde que seja disponibilizado condições para conservação e aquecimento da comida, bem como local para a tomada das refeições pelos trabalhadores que trazem refeição de casa.
  • 83.
    CANTEIRO DE OBRA- NORMAS TÉCNICAS 83 Alojamento • ALOJAMENTO NA OBRA ESTÁ EM COMPLETO DESUSO; • ULTIMAMENTE TEM SIDO CONSIDERADO TRABALHO ANÁLOGO À ESCRAVIDÃO.
  • 84.
    84 24.9 Disposições gerais 24.9.1Em todos os locais de trabalho deverá ser fornecida aos trabalhadores água potável, sendo proibido o uso de copos coletivos. 24.9.1.1 O fornecimento de água deve ser feito por meio de bebedouros na proporção de, no mínimo, 1 (um) para cada grupo de 50 (cinquenta) trabalhadores ou fração, ou outro sistema que ofereça as mesmas condições. 24.9.1.2 Quando não for possível obter água potável corrente, esta deverá ser fornecida em recipientes portáteis próprios e hermeticamente fechados. 24.9.2 Os locais de armazenamento de água potável devem passar periodicamente por limpeza, higienização e manutenção, em conformidade com a legislação local. 24.9.3 Deve ser realizada periodicamente análise de potabilidade da água dos reservatórios para verificar sua qualidade, em conformidade com a legislação.
  • 85.
    85 24.9.7 Todos osambientes previstos nesta norma devem ser construídos de acordo com o código de obras local, devendo: a) ter cobertura adequada e resistente, que proteja contra intempéries; b) ter paredes construídas de material resistente; c) ter pisos de material compatível com o uso e a circulação de pessoas; d) possuir iluminação que proporcione segurança contra acidentes.
  • 86.
    24.9.7.1 Na ausênciade código de obra local, deve ser garantido pé direito mínimo de 2,50 m (dois metros e cinquenta centímetros), exceto nos quartos de dormitórios com beliche, cuja medida mínima será de 3,00 m (três metros). 24.9.7.2 As instalações elétricas devem ser protegidas para evitar choques elétricos. 24.9.8 Devem ser garantidas condições para que os trabalhadores possam interromper suas atividades para utilização das instalações sanitárias. 24.9.9 Em edificações com diversos estabelecimentos, todas as instalações previstas nesta NR podem ser atendidas coletivamente por grupo de empregadores ou pelo condomínio, mantendo-se o empregador como o responsável pela disponibilização das instalações. 24.9.9.1 O dimensionamento deve ser feito com base no maior número de trabalhadores por turno.
  • 87.
    87 CANTEIRO DE OBRA– EXEMPLO DADOS RETIRADOS DO PCMAT DA EMPRESA (NR18 válida até 02/2021).
  • 88.
  • 89.
  • 90.
    90 CANTEIRO DE OBRA– EXEMPLOS Instalações Provisórias Iniciais e Finais Nas fases de ajustes o canteiro de obras deverá ter instalações mínimas a fim de atender às necessidades básicas dos operários dessas fases. Essas instalações estão constituídas por 10 prédios térreos construídos em bloco cerâmico, sendo assim distribuídos: • 01 sanitário masculino com 21 vasos sanitários, 01 mictório coletivo e 01 lavatório coletivo com 05 torneiras; 01 vestiário masculino com 40 chuveiros, 01 mictório coletivo, 01 lavatório com 03 torneiras e armários; • 01 vestiário / sanitário feminino, com 01 lavatório com 01 torneira, 03 vasos sanitários, 06 chuveiros e armários metálicos; • 01 refeitório operacional com mesas e bancos em madeira, 02 bebedouros e 01 lavatório com 07 torneiras; • 01 depósito com repartições para 20 empreiteiros; • 01 depósito para instalações hidráulicas com bancada e 01 para instalações elétricas com bancada (anexos);
  • 91.
    91 CANTEIRO DE OBRA– EXEMPLOS • 01 almoxarifado com sala administrativa para controle de estoque e suprimentos; • 01 refeitório administrativo com mesa e bancos de madeira; • 01 dependência para escritório de engenharia, envolvendo salas para gerencia, planejamento, medição, qualidade/ meio ambiente, departamento pessoal e administrativo, sala de reuniões e sanitários masculino e feminino; 01 dependência sendo salas para refeitório administrativo, segurança do trabalho com estoque de EPIs, sala médica e sanitários/ vestiários masculino e feminino. Há também 01 prédio construído em madeirite que abriga o almoxarifado e suprimentos. • O cimento, fornecido em sacarias será estocado em container metálico. As instalações de máquinas, equipamentos e quadros de distribuição elétrica deverão ser feitas em local separado das áreas de circulação de pessoas não habilitadas para lidar com essas instalações.
  • 92.
    92 CANTEIRO DE OBRA– EXEMPLOS
  • 93.
    93 CANTEIRO DE OBRA– EXEMPLOS
  • 94.
  • 95.
    Exercício 01 (valor:20 pontos):  DIMENSIONE A ÁREA DE VIVÊNCIA PARA UMA OBRA COM: • 20 FUNCIONÁRIOS; • 80 FUNCIONÁRIOS ; • 200 FUNCIONÁRIOS. 95 CANTEIRO DE OBRA – EXERCÍCIOS
  • 96.
    • https://sites.google.com/site/posunipmbagoe/arquivo-aulas • https://www.marilia.unesp.br/#!/cipa/mapa-de-risco/01---cores-usadas-no-mapa-de-risco/ •https://www.getwet.com.br/mapas-de-riscos/#Modelo_de_Mapa_de_risco_pronto_para_download • https://segurancadotrabalhonwn.com/como-fazer-mapa-de-risco/ • https://docs.google.com/viewer?a=v&pid=sites&srcid=ZGVmYXVsdGRvbWFpbnxwb3N1bmlwbWJhZ29lfGd4OjEw N2M5NWU3ZjAwOGE3MDc • https://spotcursos.com.br/blogs/patologia-da-construcao/posts/laudo-cautelar-de- vizinhanca?utm_campaign=blog_de_patologia__laudo_de_vizinhanca&utm_medium=email&utm_source=RD+Sta tion • https://spotcursos.com.br/blogs/patologia-da-construcao/posts/laudo-cautelar-de-vizinhança; • Vistorias na construção civil. Ed. Pini; • Logística Aplicada à Construção Civil. Ed. Pini; • Como Reduzir Perdas nos Canteiros | Ubiraci Espinelli Lemes. Ed. Pini; • Como Aumentar a Eficiência da Mão-de-obra. Ed. Pini; • Alternativas Tecnológicas para Edificações - Volume 1. Ed. Pini; • Perícias de Engenharia – A Apuração Dos Fatos | Simone Feigelson Deutsch. Ed. Leud. Referências
  • 97.
    Gerenciamento de Canteirode obras. Prof. MSc. Giovani Laquini Parte 03 Tecnologia, Gestão e desempenho das Construções
  • 98.
    98 CANTEIRO DE OBRA– CONSTRUÇÃO ENXUTA • O termo lean construction (construção enxuta), foi criado e desenvolvido pelo finlandês Lauri Koskela em 1992, adaptado do sistema de produção enxuta que surgiu no Japão na década de 1950, desenvolvida pelo Sistema Toyota de Produção (STP) de Taichi Ohno. A construção enxuta é conhecida como um novo referencial teórico instituído para a gestão de processos na construção, baseando em 11 princípios. • É uma Filosofia de Trabalho, que assenta na implementação de um conjunto de metodologias, ferramentas, processos, atividades e ações cooperativas, que permitem reduzir os desperdícios durante a fase de projeto e execução de uma obra, maximizando, dessa forma, o valor para o cliente final. •A Construção Enxuta, conhecida como Lean Construction pretende garantir: - Processos corretos; - Ferramentas apropriadas; - Recursos corretos.
  • 99.
    99 OBJETIVOS DA CONSTRUÇÃOENXUTA: • Reduzir Desperdícios; • Aumentar a Produtividade durante a Execução de uma Obra; • Aumentar a Qualidade da Construção; • Flexibilizar os Requisitos; • Reduzir Custos; • Incrementa a Satisfação do Cliente. CANTEIRO DE OBRA – CONSTRUÇÃO ENXUTA
  • 100.
    100 CANTEIRO DE OBRA– CONSTRUÇÃO ENXUTA A abordagem enxuta na construção civil visa seqüenciar as atividades de modo integrado, planejando as atividades de forma balanceada, ou seja, atividades cadenciadas e no mesmo ritmo. A conseqüência deste tipo de solução é fazer com que haja a quebra de isolamento da seqüencia de atividades na obra. A aplicação da construção enxuta no canteiro de obra pode ser verificada: • Na elaboração do layout do canteiro, visando reduções de grandes deslocamentos de materiais, equipamentos e produtos, interferindo assim no prazo de execução do empreendimento; • Na limpeza e organização do canteiro, facilitando movimentação e visualização geral; • Na logística de armazenamento de materiais; • No fluxo de pessoas, materiais e equipamentos.