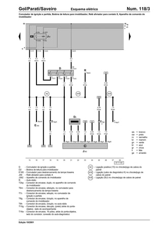
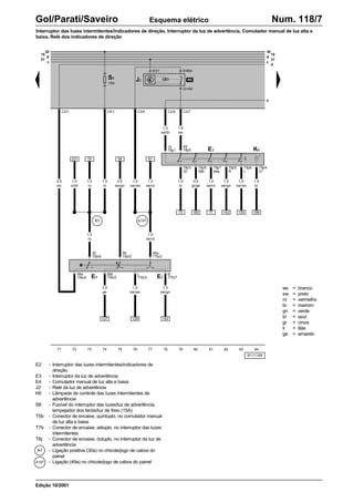
Gol/Parati/Saveiro Num. 118/1
Equipamento Básico
- 1,0 l - 4LV/48 kW, código de identificação do motor AZN, somente Gol
a partir de agosto de 2001
Esquema elétrico
Edição 10/2001
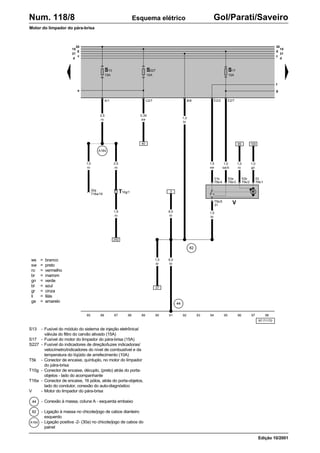
Posicionamento dos fusíveis
S1 - Buzina (10A)
S2 - Lâmpada do farol esq. de luz baixa (10A)
S4 - Ventilador para líq. de arrefecimento (30A)
S5 - Lâmpada do farol direito de luz baixa (10A)
S6 - Relógio/lanterna do compartimento de
bagagem/lanterna interna/rádio (10A)
S7 - Lâmpada do farolete direito/lâmpada da luz
traseira direita (4A)
S8 - Interruptor das luzes/luz de advertência,
lampejador dos faróis/luz de freio (15A)
S13 - Módulo do sistema de injeção eletrônica/
válvula do filtro do carvão ativado (15A)
S14 - Bomba de combustível (15A)
S15 - Farol alto direito/ lâmpada de controle do
farol alto (15A)
S16 - Farol alto esquerdo (15A)
S17 - Motor do limpador do pára-brisa (15A)
S19 - Tomada 12V (15A)
S20 - Lâmpada do farolete esquerdo/lâmpada da
luz traseira esquerda (4A)
S21 - Iluminação do cinzeiro e acendedor de
cigarros/lant. da placa de licença/lant. do
porta-luvas/luz indicadora
do funcionamento das lanternas (4A)
S22 - Aquecimento do vidro traseiro (25A)
S223 - Motor do limpador do vidro traseiro (10A)
S224 - Ventilador para ar natural (25A)
S225 - Acendedor de cigarros/lâmpada para
iluminação do acendedor de cigarros (10A)
S227- Indicadores de direção/luzes indicadoras/
velocímetro/indicadores do nível de
combustível e da temperatura do líqüido de
arrefecimento (10A)
S228 - Lâmpada do farolete esquerdo/direito da
marcha-à-ré (10A)
Posicionamento dos relés
Relé para sistema automático intermitente
do limpador e lavador (vermelho)
Relé para limpador e lavador do vidro
traseiro (laranja)
Relé da luz de advertência (amarelo)
Relé aliviador para contato X (preto)
R1
R2
R5
R7
Nota:
Os códigos S1 a S22 estão representando os fusíveis (1 a 22), respectivamente,
na central elétrica.
Os códigos S223 a S228 estão representando os fusíveis (23 a 28),
respectivamente, na central elétrica.
Nota:
Os relés têm a mesma cor de indicação de sua
cor na posição de encaixe na central elétrica
Central elétrica/vista de frente
>PA 6 GF30< Spare fuses
Reserva
10 11 12 13 14
28
27
26
25
24
23
22
21
20
19
18
17
16
15
9
8
7
6
5
4
3
2
1
97-70001
Central elétrica/vista de cima
R1 R2 R3 R4
6
4
8
2
2
4
6
8
5
3
4
8
5
6
2
4
6 5
8
3
2
R5 R6
R7
2
4
8
6
6
2
8
4
Disjuntor
>PA 6 GF30<
2
4
6
8
97-71399
Cor dos Fusíveis
4 ampères - rosa
5 ampères - marrom claro ou bronze
10 ampères - vermelho
15 ampères - azul
20 ampères - amarelo
25 ampères - incolor ou branco
30 ampères - verde
40 ampères - laranja
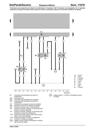
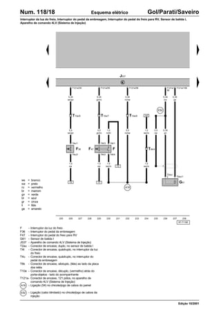
A - Bateria
B - Motor de partida
C - Alternador
C1 - Regulador de tensão
T1ag - Conector de encaixe, simples, no motor de partida
T2bo - Conector de encaixe, duplo, no alternador
T2v - Conector de encaixe, duplo, próximo à bateria
- Cabo-massa, bateria - carroceria
- Conexão à massa, próximo à bateria
- Ligação aparafusada -1- (30) na placa dos relés
- Ligação aparafusada -2- (30) na placa dos relés
- Ligação (B+) no chicote/jogo de cabos do alternador
- Ligação positiva (30) no porta-fusíveis/bateria
Num. 118/2 Gol/Parati/Saveiro
Bateria, Motor de partida, Alternador, Regulador de tensão
10 11 12 13 14
M
4,0
sw/ro
B/4
4,0
sw/ro
B
30
T2v/1
E2/5
97-71164
1 2 3 4 5 6 7 8 9
91
29
6,0
ro
0,5
bl
+
-
A
C
C1
25,0
ro
T2bo/1
25,0
ro
4,0
ro
4,0
ro
0,5
bl
T2v/2
B D
Esquema elétrico
Edição 10/2001
1
500
501
P1
1
P1
501 500
49
30
a
b
D26
49
D26
G
ws = branco
sw = preto
ro = vermelho
br = marrom
gn = verde
bl = azul
gr = cinza
li = lilás
ge = amarelo
25,0
sw
6,0
br
218
2,5
br
T1ag/
50
ws = branco
sw = preto
ro = vermelho
br = marrom
gn = verde
bl = azul
gr = cinza
li = lilás
ge = amarelo
97-71165
15 16 17 18 19 20 21 22 23 24 25 26 27 28
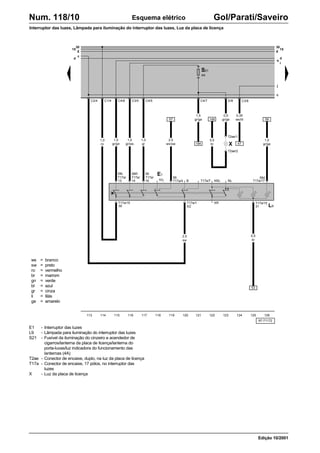
Num. 118/3
Gol/Parati/Saveiro
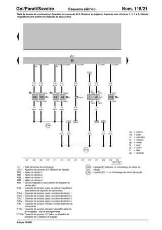
Comutador de ignição e partida, Bobina de leitura para imobilizador, Relé aliviador para contato X, Aparelho de comando do
imobilizador
Esquema elétrico
Edição 10/2001
a
b
D - Comutador de ignição e partida
D2 - Bobina de leitura para imobilizador
E165 - Comutador para destrancamento da tampa traseira
J59 - Relé aliviador para contato X
J362 - Aparelho de comando do imobilizador
R - Auto-rádio
T2bp - Conector de encaixe, duplo, no aparelho de comando
do imobilizador
T6m - Conector de encaixe, sêxtuplo, no comutador para
destrancamento da tampa traseira
T7c - Conector de encaixe, sétuplo, no comutador de
ignição e partida
T8g - Conector de encaixe, óctuplo, no aparelho de
comando do imobilizador
T8h - Conector de encaixe, óctuplo, no auto-rádio
T10g - Conector de encaixe, décuplo, (preto) atrás do porta-
objetos - lado do acompanhante
T16a - Conector de encaixe, 16 pólos, atrás do porta-objetos,
lado do condutor, conexão do auto-diagnóstico
- Ligação positiva (15) no chicote/jogo de cabos do
painel
- Ligação (cabo de diagnóstico K) no chicote/jogo de
cabos do painel
- Ligação (SU) no chicote/jogo de cabos de painel
A76
T8h/4
D
C1/1 C1/3 C2/2 C2/3
T7c/3
30
T7c/1
x
T7c/4
50
T7c/5
15
T7c/2
S
R
1,5
sw
0,5
bl/sw
212
45
T8g/8
T8g/2
E165
1,5
sw
J362
188
T2bp/1 T2bp/2 T8g/4 T8g/7
T8g/6
8/x
2/30 6/x
4/31
J59
T6m/4 T10g/5
R7
A2 A78
4,0
sw/ro
1,5
sw/ro
1,5
sw
4,0
ro
0,35
bl/sw
1,0
bl/ws
1,0
br
0,35
sw
0,35
ws
1,0
bl/gn
1,0
sw
30
1,0
sw
1,5
sw
0,35
bl/ws
30 30
15
X
31
c
T16a/7
K
A76
A2
A78
0,5
bl/sw
0,35
bl/ws
1,0
bl/ws
265
T10g/
2
226 229
1,0
sw
1,0
sw
D2
ws = branco
sw = preto
ro = vermelho
br = marrom
gn = verde
bl = azul
gr = cinza
li = lilás
ge = amarelo
97-71466
F9 - Interruptor para controle do freio de estacionamento
F22 - Interruptor da pressão do óleo (0,3 bar)
F34 - Contato de advertência para nível do óleo do freio
J285 - Aparelho de comando com unidade indicadora na
caixa do conjunto dos instrumentos do painel
K - Caixa do conjunto dos instrumentos
K2 - Lâmpada de controle do alternador
K3 - Lâmpada de controle da pressão do óleo
K14 - Lâmpada de controle do freio de estacionamento
K28 - Lâmpada de controle da temperatura do líquido de
arrefecimento/falta de líquido de arrefecimento
K94 - Lâmpada de controle dos indicadores de direção direita
K117 - Lâmpada de controle do imobilizador
T1f - Conector de encaixe, simples, no contato de
advertência para nível do óleo do freio
T1g - Conector de encaixe, simples, no contato de
advertência para nível do óleo do freio
T1r - Conector de encaixe, simples, no interruptor para
controle do freio de estacionamento
29 30 31 32 33 34 35 36 37 38 39 40 41 42
Num. 118/4 Gol/Parati/Saveiro
Esquema elétrico
Edição 10/2001
T1x - Conector de encaixe, simples, no interruptor da
pressão do óleo
T6e - Conector de encaixe, sêxtuplo, (marrom) ao lado da
placa dos relés
T6k - Conector de encaixe, sêxtuplo, (lilás) ao lado da placa
dos relés
T10f - Conector de encaixe, décuplo, (marrom) atrás do
porta-objetos - lado do acompanhante
T10g - Conector de encaixe, décuplo, (preto) atrás do porta-
objetos - lado do acompanhante
T32a - Conector de encaixe, 32 pólos, na caixa do conjunto
de instrumentos
- Ligação -2- (54) no chicote/jogo de cabos do painel
A89
Inter. p/ controle do freio de estacionamento, Inter. da pressão do óleo (0,3 bar), Contato de advert. p/ nível do óleo do freio, Conta-giros, Caixa
do conj. dos instr., Lâmp. de controle do alternador/ da pressão do óleo/ do freio de estacionamento/ da temperatura do líquido de
arrefecimento/falta de líquido de arref./ dos indic. de direção direita/ do imobilizador
8
T6e/2
J285
K117
K2
T32a/
16
T32a/11
K
K28
K94
T32a/29
K3
K14
T32a/
15
T32a/
12
0,35
bl
0,35
gn
0,5
bl
0,35
bl/sw
24
0,35
gn
30
15
X
31
c
30
15
X
31
c
T1r
T1g
T1f
90
F9
F34
T6k/
6
T6e/4
A89
0,35
br/ro
1,0
br/ro
0,5
br/ro
0,5
br/ro
1,0
br/ro
1,0
br
T1x
F22
0,35
br/gn
1,0
br/gn 183
T32a/26
0,35
gr
140
0,35
sw/gn
T32a/
4
T32a/
3
89
0,35
sw
T10g/
3
222
T10f/
3
ws = branco
sw = preto
ro = vermelho
br = marrom
gn = verde
bl = azul
gr = cinza
li = lilás
ge = amarelo
97-71479
J285 - Aparelho de comando com unidade indicadora na
caixa do conjunto dos instrumentos do painel
K - Caixa do conjunto dos instrumentos
K1 - Lâmpada de controle dos faróis altos
K10 - Lâmpada de controle do aquecimento do vidro traseiro
K65 - Lâmpada de controle para luz de advertência e
indicadores de direção esquerda
T10g - Conector de encaixe, décuplo, (preto) atrás do porta-
objetos - lado do acompanhante
T16a - Conector de encaixe, 16 pólos, atrás do porta-objetos,
lado do condutor, conexão do auto-diagnóstico
T32a - Conector de encaixe, 32 pólos, na caixa do conjunto
de instrumentos
Y4 - Odômetro
- Conexão à massa, coluna A - esquerda embaixo
- Ligação à massa -1- no chicote/jogo de cabos do
painel
43 44 45 46 47 48 49 54 55 56
50 51 52 53
J285
Gol/Parati/Saveiro Num. 118/5
Esquema elétrico
Edição 10/2001
44
81
K
Ap. de comando com unidade indic. na caixa do conjunto dos instrumentos do painel, Caixa do conj. dos instr., Lâmpada de
controle dos faróis altos/ do aquecimento do vidro traseiro/ para luz de advertência e indicadores de direção esquerda
K10
K1
Y4
T10g/6
0,35
ge/br
1,0
ge/br 128
0,35
ws/bl
0,35
sw/ws
124
0,35
br
0,35
br
44
4,0
br
T16a/4
31a
0,5
br
81
125
1,0
br
0,35
bl/ws
30
15
X
31
c
30
15
X
31
c
220
26
T32a/28 T32a/25 T32a/30 T32a/9 T32a/24
177
0,35
ro
K65
T32a/31 T32a/
23
T32a/
14
204
0,35
sw/bl
ws = branco
sw = preto
ro = vermelho
br = marrom
gn = verde
bl = azul
gr = cinza
li = lilás
ge = amarelo
97-71168
G - Transmissor do indicador do nível combustível
G1 - Indicador do nível de combustível
G3 - Indicador da temperatura para líquido de arrefecimento
G6 - Bomba de combustível
J285 - Aparelho de comando com unidade indicadora na caixa
do conjunto dos instrumentos do painel
K - Caixa do conjunto dos instrumentos
K132 - Lâmpada indicadora de avaria no acionamento elétrico da
aceleração
R - Auto-rádio
T1o - Conector de encaixe, simples, na coluna A - direita
embaixo
T4g - Conector de encaixe, quádruplo, sob o banco traseiro,
direita
T6k - Conector de encaixe, sêxtuplo, (lilás) ao lado da placa dos
relés
T6q - Conector de encaixe, sêxtuplo, (branco) próximo ao
encaixe dos reles
T8h - Conector de encaixe, óctuplo, no auto-rádio
57 58 59 60 61 62 63 64 65 66 67 68 69 70
J285
Num. 118/6 Gol/Parati/Saveiro
Esquema elétrico
Edição 10/2001
T10f - Conector de encaixe, décuplo, (marron) atrás do porta-
objetos - lado do acompanhante
T32a - Conector de encaixe, 32 pólos, na caixa do conjunto de
instrumentos
- Conexão à massa, coluna A - esquerda embaixo
- Ligação à massa -5- no chicote/jogo de cabos do painel
- Ligação positiva (58b) no chicote/jogo de cabos do
painel
- Ligação (56) no chicote/jogo de cabos do painel
A4
A51
K
Transmissor do indicador do nível combustível, Indicador do nível de combustível, Indicador da temperatura para líquido de arrefecimento,
Bomba de combustível, Aparelho de comando com unidade indicadora na caixa do conjunto dos instrumentos do painel, Caixa do conjunto dos
instrumentos, Lâmpada indicadora de avaria no acionamento elétrico da aceleração
T32a/5
G3 G1
T32a/
8
M
G G6
T6k/
5
T4g/2 T4g/4 T4g/
1
T4g/3
30
15
X
31
c
30
15
X
31
c
119 75
A51
0,35
ws/gn
2,5
ws/sw
2,5
ws/gn
T32a/20
126 167
A4
0,35
gr/ge
0,5
bl
0,5
bl
0,5
sw
0,5
ro
2,5
ro
2,5
sw/ro
2,5
br
0,5
br/sw
0,35
br/sw
T6q/
1
0,5
br
0,35
br/ws
1,0
br
0,5
br
0,35
br/li
335
335
240
273
44
T1o
T10f/2
1,0
br/ws
239
K132
T32a/
7
T32a/
32
274
0,35
gr/gn
T32a/
27
0,5
gr/ge
T8h/6
0,5
gr/gn
R
1,0
gr/ge
44
ws = branco
sw = preto
ro = vermelho
br = marrom
gn = verde
bl = azul
gr = cinza
li = lilás
ge = amarelo
Gol/Parati/Saveiro Num. 118/7
97-71169
71 72 73 74 75 76 77 78 79 80 81 82 83 84
Esquema elétrico
Edição 10/2001
E2 - Interruptor das luzes intermitentes/indicadores de
direção
E3 - Interruptor da luz de advertência
E4 - Comutador manual de luz alta e baixa
J2 - Relé da luz de advertência
K6 - Lâmpada de controle das luzes intermitentes de
advertência
S8 - Fusível do interruptor das luzes/luz de advertência,
lampejador dos faróis/luz de freio (15A)
T5b - Conector de encaixe, quíntuplo, no comutador manual
de luz alta e baixa
T7b - Conector de encaixe, sétuplo, no interruptor das luzes
intermitentes
T8j - Conector de encaixe, óctuplo, no interruptor da luz de
advertência
- Ligação positiva (30a) no chicote/jogo de cabos do
painel
- Ligação (49a) no chicote/jogo de cabos do painel
A1
A157
Interruptor das luzes intermitentes/indicadores de direção, Interruptor da luz de advertência, Comutador manual de luz alta e
baixa, Relé dos indicadores de direção
79 58 81
129 142
E4 E2
56a
T5b/4
30
T5b/5
56
T5b/3
49a
T7b/2
56b
T5b/2
L
T7b/3
R
T7b/7
2,5
ge
1,0
sw/ws
1,0
sw/gn
S8
15A
C2/1 C4/1 C3/4
A1 A157
1,0
ro
1,0
sw/ro
231
2,5
ws
127
1,0
ro/bl
1,5
ro
1,0
ro
2,5
ws/gn
1,0
sw/ws
1,0
sw/ro
E3 K6
T8j/2
49
T8j/1
15
T8j/4
31
T8j/8
58b
T8j/7
49a
T8j/5
R
T8j/6
L
T8j/3
30
C2/5 C3/7
J2
6/31 8/49a
2/+49
R5
1,0
sw/br
1,5
sw
196
185 77 143 130
73
1,5
br
0,5
gr/ge
1,0
sw/ro
1,0
sw/gn
1,0
sw/ws
1,0
ro
30
15
X
31
c
30
15
X
31
c
d
e
ws = branco
sw = preto
ro = vermelho
br = marrom
gn = verde
bl = azul
gr = cinza
li = lilás
ge = amarelo
S13 - Fusível do módulo do sistema de injeção eletrônica/
válvula do filtro do carvão ativado (15A)
S17 - Fusível do motor do limpador do pára-brisa (15A)
S227 - Fusível do indicadores de direção/luzes indicadoras/
velocímetro/indicadores do nível de combustível e da
temperatura do líqüido de arrefecimento (10A)
T5k - Conector de encaixe, quíntuplo, no motor do limpador
do pára-brisa
T10g - Conector de encaixe, décuplo, (preto) atrás do porta-
objetos - lado do acompanhante
T16a - Conector de encaixe, 16 pólos, atrás do porta-objetos,
lado do condutor, conexão do auto-diagnóstico
V - Motor do limpador do pára-brisa
- Conexão à massa, coluna A - esquerda embaixo
- Ligação à massa no chicote/jogo de cabos dianteiro
esquerdo
- Ligação positiva -2- (30a) no chicote/jogo de cabos do
painel
97-71170
85 86 87 88 89 90 91 92 93 94 95 96 97 98
37
3
B/8
1,0
br
6,0
br
6,0
br
Num. 118/8 Gol/Parati/Saveiro
Esquema elétrico
Edição 10/2001
44
82
82
44
e
Motor do limpador do pára-brisa
C2/7
S227
10A
0,35
sw
30
15
X
31
c
30
15
X
31
c
d
d
A/1
S13
15A
T16a/16
30a
T10g/1
A164
1,0
br
2,5
ro
2,5
ro
1,0
ro
1,5
ro
40 99 100
E2/2 E2/7
S17
15A
V
T5k/4
31b
T5k/3
53a
T5k/2
53b
T5k/1
53
T5k/5
31
M
1,0
sw
1,0
sw/li
1,0
ro
1,0
gn
1,0
br
f
g
A164
242
ws = branco
sw = preto
ro = vermelho
br = marrom
gn = verde
bl = azul
gr = cinza
li = lilás
ge = amarelo
E
97-71171
99 100 101 102 103 104 105 106 107 108 109 110 111 112
Gol/Parati/Saveiro Num. 118/9
Esquema elétrico
Edição 10/2001
Interruptor do limpador do pára-brisa com ligação para funcionamento intermitente, Relé para limpador e lavador do vidro
traseiro, Relé para sistema automático intermitente do limpador e lavador
30
15
X
31
c
30
15
X
c
d
d
96
97 187
C3/1 C3/6 C4/8 C4/2 C1/6 D/1
M
T2s/2
T2s/1
1,0
br
V12
D/2
T2am/2
1,0
ro
1,0
sw
T6d/1
1,0
sw/ro
1,0
sw/ro
V59
E22
S223
10A
2/53m 6/31
4/t
1/i
8/15a
5/53S
J31
6/31
4/L
8/15
T6d/6
T2dm/
1
T2dm/
2
T2am/
1
T5a/1
53b
T5a/4
53e
T5a/2
53a
T5a/5
i
T4c/2
t
T4c/1
h
53
T5a/3
31
T4c/3
T6d/5
T6d/2
J30
2/53
R2
R1
A159
A158
52
M
1,0
gn
1,0
gn
1,5
br
f
g
E22 - Interruptor do limpador do pára-brisa com ligação
para funcionamento intermitente
J30 - Relé para limpador e lavador do vidro traseiro
J31 - Relé para sistema automático intermitente do
limpador e lavador
S223 - Fusível do motor do limpador do vidro traseiro (10A)
T2am - Conector de encaixe, duplo, no motor do limpador do
vidro traseiro
T2dm - Conector de encaixe, duplo, atrás do revestimento
traseiro esquerdo, próximo à caixa de roda
T2s - Conector de encaixe, duplo, na bomba do lavador do
pára-brisa e do vidro traseiro
T4c - Conector de encaixe, quádruplo, no interruptor do
limpador do pára-brisa com ligação para
funcionamento intermitente
T5a - Conector de encaixe, quíntuplo, no interruptor do
limpador do pára-brisa com ligação para
funcionamento intermitente
T6d - Conector de encaixe, sêxtuplo, (preto) ao lado da
placa dos relés
V12 - Motor do limpador do vidro traseiro
V59 - Bomba do lavador do pára-brisa e do vidro traseiro
- Conexão à massa na tampa traseira
- Ligação (T) no chicote/jogo de cabos do painel
- Ligação (L) no chicote/jogo de cabos do painel
52
A158
A159
1,5
sw/ge
1,5
gn
1,5
sw/ge
1,5
gn
1,0
sw/ge
1,0
sw/li
1,0
sw/gn
1,0
sw
1,0
sw
1,0
sw/ro
1,0
ro
1,0
sw
1,0
sw/ro
ws = branco
sw = preto
ro = vermelho
br = marrom
gn = verde
bl = azul
gr = cinza
li = lilás
ge = amarelo
97-71172
113 114 115 116 117 118 119 120 121 122 123 124 125 126
Num. 118/10 Gol/Parati/Saveiro
Esquema elétrico
Edição 10/2001
E1 - Interruptor das luzes
L9 - Lâmpada para iluminação do interruptor das luzes
S21 - Fusível da iluminação do cinzeiro e acendedor de
cigarros/lanterna da placa de licença/lanterna do
porta-luvas/luz indicadora do funcionamento das
lanternas (4A)
T2ae - Conector de encaixe, duplo, na luz da placa de licença
T17a - Conector de encaixe, 17 pólos, no interruptor das
luzes
X - Luz da placa de licença
Interruptor das luzes, Lâmpada para iluminação do interruptor das luzes, Luz da placa de licença
B T17a/7 NSL
XR
NL
59
57
53
C2/4 C1/4 C4/6 C4/5
C3/5
149
T2ae/1
T2ae/2
D/8
E1
2,5
sw
184
C4/7
58L
T17a/
13
58R
T17a/
14
58
T17a/
16 T17a/4
56
T17a/17
58d
T17a/15
30
T17a/1
XZ
T17a/10
31
X
L9
TFL
S21
4A
30
15
X
c
d
30
15
X
d
h
i
0,5
br
c
1,0
gr/ge
0,5
br
1,5
gr/ge
j
C3/8
0,5
gr/ge
47
0,35
ws/bl
1,0
gr/gn
1,0
gr/ws
1,0
gr
2,5
ws/sw
1,0
ro
ws = branco
sw = preto
ro = vermelho
br = marrom
gn = verde
bl = azul
gr = cinza
li = lilás
ge = amarelo
127 128 129 130 131 132 133 134 135 136 137 138 139 140
L1 - Lâmpada de dois filamentos para farol esquerdo
L2 - Lâmpada de dois filamentos para farol direito
M1 - Lâmpada do farolete esquerdo
M3 - Lâmpada do farolete direito
M5 - Lâmpada do indicador de direção dianteiro esquerdo
M7 - Lâmpada do indicador de direção dianteiro direito
S2 - Fusível do farol esqu. de luz baixa (10A)
S5 - Fusível do farol direito de luz baixa (10A)
S7 - Fusível da lâmpada do farolete direito/lâmpada da luz
traseira direita (4A)
S15 - Fusível do farol alto direito/ lâmpada de controle do
farol alto (15A)
S16 - Fusível do farol alto esquerdo (15A)
S20 - Fusível da lâmpada do farolete esquerdo/lâmpada da
luz traseira esquerda (4A)
T2bz - Conector de encaixe, duplo, na lâmpada do farolete
direito
T2ca - Conector de encaixe, duplo, na lâmpada do farolete
esquerdo
T2h - Conector de encaixe, duplo, na lâmpada do indicador
de direção dianteiro direito
T2n - Conector de encaixe, duplo, na lâmpada do indicador
de direção diant. esquerdo
T3w - Conector de encaixe, triplo, na lâmpada de dois
filamentos para farol esquerdo
T3x - Conector de encaixe, triplo, na lâmpada de dois
filamentos para farol direito
T6d - Conector de encaixe, sêxtuplo, (preto) ao lado da
placa dos relés
T6k - Conector de encaixe, sêxtuplo, (lilás) ao lado da placa
dos relés
- Conexão à massa, coluna A - esquerda embaixo
- Ligação à massa -2- no chicote/jogo de cabos
dianteiro esquerdo
- Ligação positiva (indicadores de direção dir.) no
chicote/jogo de cabos do painel
- Ligação positiva (indicadores de direção esqu.) no
chicote/jogo de cabos do painel
Gol/Parati/Saveiro Num. 118/11
Esquema elétrico
Edição 10/2001
Lâmpada de dois filamentos para farol esquerdo, direito, Lâmpada do farolete esquerdo, direito, Lâmpada do indicador de
direção dianteiro esquerdo, direito
97-71173
181
C4/4
56b
E1/8
58L
E2/3
56a
E2/1
56b
E1/2
56b
E1/4
56a
E1/5
58r
74 76 83
49
S20
4A
S16
15A
S2
10A
S5
10A
S7
4A
D/6
58r
A6
44
30
15
X
d
h
i
c
30
15
X
j
l
c
6,0
br
151
38
1,0
br
1,5
br
1,5
br
0,5
br
T6d/
4
T2h/1
T2h/2
1,0
br
1,0
br
1,0
sw/ws
M3 M7
M5 M1
T2n/1
T2n/2
A5
108
n
T2bz/
1
T2bz/
2
T6d/
3
T3x/1
T2ca/
1
T2ca/
2
T3x/2
T3x/3
T3w/2
T3w/1 T3w/3
L1 L2
0,5
gr/gn
1,5
ws/sw
1,5
ge
1,5
ge
1,5
ws/ro
0,5
gr/ws
2,5
ge
0,5
gr/ws
1,0
sw/gn
0,35
sw/gn
1,0
sw/gn
1,0
sw/ws
145
T6k/
1
1,0
sw/ws
1,0
sw/ws
0,35
sw/ws
1,0
sw/ws
1,0
sw/ws
4,0
br
S15
15A
A6
A5
108
44
ws = branco
sw = preto
ro = vermelho
br = marrom
gn = verde
bl = azul
gr = cinza
li = lilás
ge = amarelo
97-71174
141 142 143 144 145 146 147 150 151 152 153 154
148 149
Num. 118/12 Gol/Parati/Saveiro
Esquema elétrico
Edição 10/2001
F4 - Interruptor dos faroletes de marcha-à-ré
M2 - Lâmpada da luz traseira direita
M4 - Lâmpada da luz traseira esquerda
M6 - Lâmpada do indicador de direção traseiro esquerdo
M8 - Lâmpada do indicador de direção traseiro direito
M9 - Lâmpada da luz do freio esquerdo
M10 - Lâmpada da luz do freio direito
M16 - Lâmpada do farolete esquerdo da marcha-à-ré
M17 - Lâmpada do farolete direito de marcha-à-ré
S228 - Fusível da lâmpada do farolete esquerdo/direito de
marcha-à-ré (10A)
T2ax - Conector de encaixe, duplo, no interruptor dos
faroletes de marcha-à-ré
T5l - Conector de encaixe, quíntuplo, na luz traseira esq.
T5m - Conector de encaixe, quíntuplo, na luz traseira direita
T6e - Conector de encaixe, sêxtuplo, (marrom) ao lado da
placa dos relés
T6k - Conector de encaixe, sêxtuplo, (lilás) ao lado da placa
dos relés
T10g - Conector de encaixe, décuplo, (preto) atrás do porta-
objetos - lado do acompanhante
- Conexão à massa no porta-malas
- Ligação à massa -5- no chicote/jogo de cabos traseiro
- Ligação positiva (indicadores de direção dir.) no
chicote/jogo de cabos do painel
- Ligação positiva -1- (54) no chicote/ jogo de cabos
traseiro
- Ligação (RF) no chicote/jogo de cabos traseiro
Interrup. da luz do freio, dos faroletes de marcha-à-ré, Lâmp.da luz tras. dir., da luz traseira esq., do ind. de direção tras. esq., do
ind. de direção tras.dir., da luz do freio esq., da luz do freio dir., do farolete esq.da marcha-à-ré, dir.de marcha-à-ré
F4
T5m/4
T5m/1
D/7 B/7
30
15
X
l
30
X
c c
131
W66
234
A5
T6e/1
W1
141
T6k/3
139
T5l/4
M4
T5l/1
M6
T5l/5
T5l/2 T5m/2
M16 M9 M10
T5l/3 T5m/3
150 82
78
122
51
333
T5m/5
M17
T2ax/1
T2ax/2
M8 M2
T10g/9
S228
10A
n
1,0
sw/bl
1,0
sw
1,0
sw/gn
1,0
sw/gn
1,0
sw/gn
0,5
gr/gn
1,0
sw/ro
1,0
sw
1,0
sw/bl
0,5
gr/ws
1,0
sw/gn
1,0
sw
1,0
sw
1,0
sw/ws
1,0
sw/gn
1,0
br
1,0
br
1,0
sw
1,0
sw/bl
0,5
br
4,0
br
51
333
A5
W1
T10g/
10
T6k/2
W66
1,0
sw/ro
1,0
sw/ro
ws = branco
sw = preto
ro = vermelho
br = marrom
gn = verde
bl = azul
gr = cinza
li = lilás
ge = amarelo
97-71175
155 156 157 158 159 160 161 162 163 164 165 166 167 168
C3/3
T5u/1 T5u/2 T5u/3 T5u/4
ϑ
M
T2bm/1
V2
T2bm/2
N24
T5t/1 E9
T8k/4
T8k/3
Num. 118/13
Gol/Parati/Saveiro
S224
25A
Interruptor do ventilador para ar natural, Lâmpada para iluminação do mecanismo de regulagem da ventilação para ar natural,
Pré-resistência do ventilador para ar natural com fusível de sobre-aquecimento, Ventilador para ar natural
Esquema elétrico
T5t/2 T5t/3 T5t/4 T5t/5
Edição 10/2001
E9 - Interruptor do ventilador para ar natural
L16 - Lâmpada para iluminação do mecanismo de
regulagem da ventilação para ar natural
N24 - Pré-resistência do ventilador para ar natural com
fusível de sobre-aquecimento
S14 - Fusível da bomba de combustível (15A)
S19 - Fusível da tomada 12V (15A)
S224 - Fusível do ventilador para ar natural (25A)
T2a - Conector de encaixe, duplo, no centro atrás do painel
T2bm - Conector de encaixe, duplo, no ventilador para ar
natural
T5t - Conector de encaixe, quíntuplo, no interruptor do
ventilador para ar natural
T5u - Conector de encaixe, quíntuplo, na pré-resistência do
ventilador para ar natural com fusível de sobre-
aquecimento
T6q - Conector de encaixe, sêxtuplo, (branco) próximo ao
encaixe dos reles
T8k - Conector de encaixe, óctuplo, no centro atrás do
painel
44
330
330
44
T10g - Conector de encaixe, décuplo, (preto) atrás do porta-
objeto - lado do acompanhante
V2 - Ventilador para ar natural
- Conexão à massa, coluna A - esquerda embaixo
- Ligação à massa -1- no chicote/jogo de cabos da
caixa de ventilação
- Ligação à massa -2- no chicote/jogo de cabos da
caixa de ventilação
329
329
2,5
sw/ro
1,0
sw/ro
2,5
br
2,5
br
4,0
br
1,0
sw/ro
1,0
sw/ro
1,0
sw/ro
1,0
sw/ro
2,5
sw/br
1,0
sw/ro
60
L16
L16 T8k/5
T2a/1
T2a/2
0,5
sw
0,5
sw
0,5
sw
0,5
br
0,5
sw
0,5
gr/ge
0,5
gr/ge
X X
c c
30 30
191
1,0
ro
1,5
ro
S19
15A
D/4
S14
15A
A/4
2,5
ro/bl
276
T6q/4
T10g/4
2,5
ro/bl
ws = branco
sw = preto
ro = vermelho
br = marrom
gn = verde
bl = azul
gr = cinza
li = lilás
ge = amarelo
97-71176
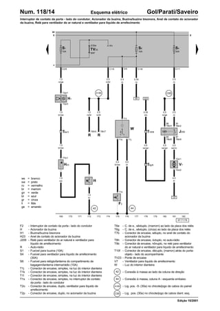
F2 - Interruptor de contato da porta - lado do condutor
H - Acionador da buzina
H1 - Buzina/buzina bisonora
H23 - Anel de contato do acionador da buzina
J209 - Relé para ventilador do ar natural e ventilador para
líquido de arrefecimento
R - Auto-rádio
S1 - Fusível para buzina (10A)
S4 - Fusível para ventilador para líquido de arrefecimento
(30A)
S6 - Fusível para relógio/lanterna do compartimento de
bagagem/lanterna interna/rádio (10A)
T1j - Conector de encaixe, simples, na luz do interior dianteira
T1k - Conector de encaixe, simples, na luz do interior dianteira
T1l - Conector de encaixe, simples, na luz do interior dianteira
T1s - Conector de encaixe, simples, no interruptor de contato
da porta - lado do condutor
T2o - Conector de encaixe, duplo, ventilador para líquido de
arrefecimento
T2p - Conector de encaixe, duplo, no acionador da buzina
169 170 171 172 173 174 175 176 177 178 179 180 181 182
Num. 118/14 Gol/Parati/Saveiro
Esquema elétrico
Edição 10/2001
T6e - C. de e., sêxtuplo, (marrom) ao lado da placa dos relés
T6g - C. de e., sêxtuplo, (cinza) ao lado da placa dos relés
T7b - Conector de encaixe, sétuplo, no anel de contato do
acionador da buzina
T8h - Conector de encaixe, óctuplo, no auto-rádio
T9b - Conector de encaixe, nônuplo, no relé para ventilador
do ar natural e ventilador para líquido de arrefecimento
T10f - Conector de encaixe, décuplo, (marron) atrás do porta-
objeto - lado do acompanhante
TV23 - Ponte de encaixe
V7 - Ventilador para líquido de arrefecimento
W - Luz do interior dianteira
- Conexão à massa ao lado da coluna de direção
- Conexão à massa, coluna A - esquerda embaixo
- Lig. pos. -5- (30a) no chicote/jogo de cabos do painel
- Lig. pos. (30a) no chicote/jogo de cabos diant. esq.
Interruptor de contato da porta - lado do condutor, Acionador da buzina, Buzina/buzina bisonora, Anel de contato do acionador
da buzina, Relé para ventilador do ar natural e ventilador para líquido de arrefecimento
E1/1
T2p/1
T2p/2
H1
E2/6
T7b/1
H
S4
30A
2/30a
8/87
TV23
S1
10A
6/x
H23
42
30
X
c
X
1,5
br
1,5
sw
1,5
br/ws
1,5
br/ws
1,5
ro/ge
2,5
ro
J209
T9b/6
85
T9b/2
30
T9b/4
86
T9b/8
87
137
M
T2o/1
T2o/2
V7
2,5
sw/ro
4,0
br
2,5
ro
0,5
ro/ge
C55
T6e/3
223
0,5
sw/gn
T10f/8
0,5
sw/gn
0,35
ws
W
T1l
T1k T1j
T1s
F2
44
D/5
S6
10A
56
C1/8
C1/5
0,5
ro
0,35
ro
2,5
ro/bl
2,5
ro/bl
1,0
ro/bl
T8h/7
R
T8h/5
R
44
A189
42
A189
0,5
br/ws
0,5
br T6g/6
C55
ws = branco
sw = preto
ro = vermelho
br = marrom
gn = verde
bl = azul
gr = cinza
li = lilás
ge = amarelo
97-71177
L28 - Lâmpada para iluminação do acendedor de cigarros
(isqueiro)
L42 - Lâmpada para iluminação da caixa de tomada
R - Auto-rádio
S225 - Fusível para acendedor de cigarros/lâmpada para
iluminação do acendedor de cigarros (10A)
T1at - Conector de encaixe, simples, na lâmpada para
iluminação da caixa de tomada
T1b - Conector de encaixe, simples, na lâmpada para
iluminação do acendedor de cigarros
T2cw - Conector de encaixe, duplo, no caixa de tomada - 12
volts
T2d - Conector de encaixe, duplo, no acendedor de cigarros
T8h - Conector de encaxe, óctuplo, no auto-rádio
U1 - Acendedor de cigarros (isqueiro)
U5 - Caixa de tomada - 12 volts
- Conexão à massa, coluna A - direita embaixo
- Ligação à massa -3- no chicote/jogo de cabos do
painel
- Ligação à massa no chicote/jogo de cabos do painel
- Ligação (58a) no chicote/jogo de cabos do painel
183 184 185 186 187 188 189 190 191 192 193 194 195 196
Gol/Parati/Saveiro Num. 118/15
Lâmpada para iluminação do acendedor de cigarros (isqueiro), Lâmpada para iluminação da caixa de tomada
Esquema elétrico
Edição 10/2001
80
121
41
84
T2d/1
U1
T2d/2
T1b
L28
104 23
S225
10A
C2/8
43 43
199
213
A37
1,0
br
T1at
L42
T2cw/1
T2cw/2
U5
0,5
gr/ge
1,5
br
166
1,5
ro
1,5
br
1,5
br
X
199
0,5
br
0,5
gr/ge
198
0,5
gr/ge
X
0,5
br
T8h/8
R
43
199
213
A37
0,35
gr
1,5
gr/ge
0,5
gr/ge
1,5
ro
2,5
br
1,5
br
2,5
br
ws = branco
sw = preto
ro = vermelho
br = marrom
gn = verde
bl = azul
gr = cinza
li = lilás
ge = amarelo
97-71178
197 198 199 205 206 207 208 209 210
200 201 202 203 204
Num. 118/16 Gol/Parati/Saveiro
Esquema elétrico
Edição 10/2001
E15 - Comutador para aquecimento do vidro traseiro
L39 - Lâmpada para iluminação do interruptor para
aquecimento do vidro traseiro
S22 - Fusível para aquecimento do vidro traseiro (25A)
T1ac - Conector de encaixe, simples, no aquecimento do
vidro traseiro
T1ad - Conector de encaixe, simples, no aquecimento do
vidro traseiro
T2dl - Conector de encaixe, duplo, atrás do revestimento
traseiro esquerdo, próximo à caixa de roda
T4d - Conector de encaixe, quádruplo, no comutador para
aquecimento do vidro traseiro
T6i - Conector de encaixe, sêxtuplo, (azul) ao lado da placa
dos relés
Z1 - Aquecimento do vidro traseiro
- Conexão à massa, coluna A - esquerda embaixo
- Conexão à massa na tampa traseira
- Ligação à massa -2- no chicote/jogo de cabos traseiro
- Ligação à massa -2- no chicote/jogo de cabos da
tampa traseira
- Ligação à massa -2- no chicote/jogo de cabos da
tampa traseira
Comutador para aquecimento do vidro traseiro, Lâmpada para iluminação do interruptor para aquecimento do vidro traseiro
C4/3
193
186
55
T4d/2
T4d/3 T4d/1
T4d/4
E15 T2dl/1
T6i/4
T2dl/2
S22
25A
Z1
T1ac
T1ad
52
218
A82
L39
87
44
2,5
br
2,5
sw
2,5
br
0,5
gr/ge
2,5
sw
2,5
sw/bl
0,35
sw/bl
2,5
sw
2,5
br
0,5
br
2,5
sw
X
2,5
br
44
52
87
A82
2,5
sw
218
ws = branco
sw = preto
ro = vermelho
br = marrom
gn = verde
bl = azul
gr = cinza
li = lilás
ge = amarelo
97-71179
G22 - Transmissor do velocímetro
J537 - Aparelho de comando 4LV (Sistema de Injeção)
T3g - Conector de encaixe, triplo, no transmissor do
velocímetro
T121a- Conector de encaixe, 121 pólos, no aparelho de
comando 4LV (Sistema de Injeção)
- Ligação à massa no chicote/jogo de cabos do sistema
de injeção
- Ligação (transmissor de velocidade) no chicote/jogo
de cabos do sistema de injeção
- Ligação positiva (15) no chicote/jogo de cabos da
injeção
211 212 213 214 215 216 217 218 219 220 221 222 223 224
Gol/Parati/Saveiro Num. 118/17
Transmissor do velocímetro, Aparelho de comando 4LV (Sistema de Injeção)
Esquema elétrico
Edição 10/2001
J537
T3g/2
G22
T3g/1
T3g/3
18 261 277
T121a/4 T121a/
1
4 262
T121a/2
1,0
br
1,5
sw
1,5
sw
1,0
sw
1,0
sw
1,0
br
1,5
sw
1,0
br
2,5
br
2,5
br
43
1,0
ge/br
1,0
ge/br
0,35
ge/br
E41 331
E40
T121a/47
178
0,35
ws
T121a/
54
T121a/
37
31
0,35
gn
331
E40
E41
ws = branco
sw = preto
ro = vermelho
br = marrom
gn = verde
bl = azul
gr = cinza
li = lilás
ge = amarelo
97-71180
225 226 227 233 234 235 236 237 238
228 229 230 231 232
Num. 118/18 Gol/Parati/Saveiro
Esquema elétrico
Edição 10/2001
F - Interruptor da luz do freio
F36 - Interruptor do pedal da embreagem
F47 - Interruptor do pedal do freio para RV
G61 - Sensor de batida I
J537 - Aparelho de comando 4LV (Sistema de Injeção)
T2au - Conector de encaixe, duplo, no sensor de batida l
T4t - Conector de encaixe, quádruplo, no interruptor da luz
do freio
T4u - Conector de encaixe, quádruplo, no interruptor do
pedal da embreagem
T6k - Conector de encaixe, sêxtuplo, (lilás) ao lado da placa
dos relés
T10e - Conector de encaixe, décuplo, (vermelho) atrás do
porta-objetos - lado do acompanhante
T121a- Conector de encaixe, 121 pólos, no aparelho de
comando 4LV (Sistema de Injeção)
- Ligação (54) no chicote/jogo de cabos do painel
- Ligação (cabo blindado) no chicote/jogo de cabos da
injeção
Interruptor da luz do freio, Interruptor do pedal da embreagem, Interruptor do pedal do freio para RV, Sensor de batida I,
Aparelho de comando 4LV (Sistema de Injeção)
J537
T121a/39 T121a/55
T4t/2 T4t/4
T4u/2
T4u/1 T4t/3
F36 F
F47
T10e/7
15 17
1,0
sw
0,35
gn/ro
1,0
sw
0,35
ws/gn
0,5
ws/gn
T10e/9
0,5
gn/ro
1,0
sw/ro
147
1,0
sw/ro
T121a/56
T10e/8
0,35
ro/sw
0,5
ro/sw
T6k/4
1,0
sw/ro
A18
T121a/
99
T121a/106
0,35
sw
0,35
ge
0,5
sw
0,35
gn
G61
E52
T4t/1
72
1,0
ro/bl
T2au/
2 T2au/1
A18
E52
ws = branco
sw = preto
ro = vermelho
br = marrom
gn = verde
bl = azul
gr = cinza
li = lilás
ge = amarelo
97-71181
G2 - Transmissor para temperatura do líquido de
arrefecimento
G40 - Transmissor Hall
G42 - Transmissor para temperatura do ar aspirado
G62 - Transmissor para temperatura do líquido de
arrefecimento
G71 - Transmissor para pressão do coletor de admissão
J537 - Aparelho de comando 4LV (Sistema de Injeção)
T3q - Conector de encaixe, triplo, no transmissor hall
T4j - Conector de encaixe, quádruplo, no transmissor para
pressão do coletor de admissão
T4k - Conector de encaixe, quádruplo, no transmissor para
temperatura do líquido de arrefecimento
T10g - Conector de encaixe, décuplo, (preto) atrás do porta-
objeto - lado do acompanhante
T121a- Conector de encaixe, 121 pólos, no aparelho de
comando 4LV (Sistema de Injeção)
- Ligação à massa (massa do transmissor) no chicote/
jogo de cabos da injeção
239 240 241 242 243 244 245 246 247 248 249 250 251 252
Gol/Parati/Saveiro Num. 11819
Transmissor para temperatura do líquido de arrefecimento, Transmissor Hall, Transmissor para temperatura do ar aspirado/
temperatura do líquido de arrefecimento/ pressão do coletor de admissão, Aparelho de comando 4LV (Sistema de Injeção)
Esquema elétrico
Edição 10/2001
J537
ϑ ϑ
T4k/1 T4k/4
T4k/2 T4k/3
1,0
br
T10g/
7
66
0,35
br/gn
1,0
br
64
1,0
br/ws
0,35
br/bl
0,35
br/bl
0,35
br/bl
0,35
br/bl
T121a/108
285
339
0,35
br/bl
G71
G42
T4j/4
T4j/2
T121a/109
0,35
br/sw
T121a/
85
0,35
br/ro
0,35
bl
T3q/3
T3q/
1
0,35
bl/ws
T121a/98
0,35
bl
T4j/1
E46
T3q/2
T121a/86
0,35
br/gr
G40
T121a/
93
T121a/
3
87
1,5
ro
ϑ
G62
G2
T4j/3
339
E46 - Ligação positiva -1- (5 Volt) no chicote/jogo de cabos
da injeção
ws = branco
sw = preto
ro = vermelho
br = marrom
gn = verde
bl = azul
gr = cinza
li = lilás
ge = amarelo
97-71182
253 254 255 261 262 263 264 265 266
256 257 258 259 260
Num. 118/20 Gol/Parati/Saveiro
Esquema elétrico
Edição 10/2001
G186 - Comando da válvula borboleta do acelerador
(aceleração elétrica)
G187 - Transmissor do ângulo de posição -1- para comando
da válvula borboleta do acelerador (aceleração
elétrica)
G188 - Transmissor do ângulo de posição -2- para comando
da válvula borboleta do acelerador (aceleração
elétrica)
J338 - Unidade de comando da válvula borboleta do
acelerador
J537 - Aparelho de comando 4LV (Sistema de Injeção)
N152 - Transformador de ignição
P - Conectores das velas
Q - Velas
T4w - Conector de encaixe, quádruplo, no transformador de
ignição
T6x - Conector de encaixe, sêxtuplo, na unidade de
comando da válvula borboleta do acelerador
T121a- Conector de encaixe, 121 pólos, no aparelho de
comando 4LV (Sistema de Injeção)
Comando da válvula borboleta do acelerador (aceleração elétrica), Transmissor do ângulo de posição -1- para comando da válvula borboleta do
acelerador (aceleração elétrica), Transmissor do ângulo de posição -2- para comando da válvula borboleta do acelerador (aceleração elétrica),
Unidade de comando da válvula borboleta do acelerador, Aparelho de comando 4LV (Sistema de Injeção), Transformador de ignição
J537
T121a/91
G186 G187 G188
T6x/3 T6x/5 T6x/1 T6x/2 T6x/4 T6x/6
J338
T121a/
117
T121a/
118
T121a/
92
T121a/
83
T121a/
84
1,0
bl/sw
1,0
bl/ge
0,35
ws/sw
0,35
ws/ro
0,35
br/ge
0,35
bl/gn
P
Q
N152
T4w/1
T4w/3
T4w/4
T4w/2
T121a/
103
0,35
sw/ro
0,35
bl/ro
219
213
1,5
sw
2,5
br
T121a/
102
T121a/43
25
0,35
bl/ws
M
ws = branco
sw = preto
ro = vermelho
br = marrom
gn = verde
bl = azul
gr = cinza
li = lilás
ge = amarelo
97-71183
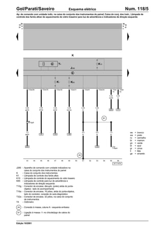
J17 - Relé da bomba de combustível
J537 - Aparelho de comando 4LV (Sistema de Injeção)
N30 - Injetor do cilindro 1
N31 - Injetor do cilindro 2
N32 - Injetor do cilindro 3
N33 - Injetor do cilindro 4
N80 - Válvula magnética I para sistema de depósito de
carvão ativo
T2ar - Conector de encaixe, duplo, na válvula magnética I
para sistema de depósito de carvão ativo
T2bd - Conector de encaixe, duplo, no injetor do cilindro 1
T2be - Conector de encaixe, duplo, no injetor do cilindro 2
T2bf - Conector de encaixe, duplo, no injetor do cilindro 3
T2bg - Conector de encaixe, duplo, no injetor do cilindro 4
T9e - Conector de encaixe, nônuplo, no relé da bomba de
combustível
T10e - Conector de encaixe, décuplo, (vermelho) atrás do
porta-objetos - lado do acompanhante
T121a- Conector de encaixe, 121 pólos, no aparelho de
comando 4LV (Sistema de Injeção)
- Ligação (87,injetores) no chicote/jogo de cabos da
injeção
- Ligação (87) -1- no chicote/jogo de cabos da injeção
267 268 269 270 271 272 273 274 275 276 277 278 279 280
Gol/Parati/Saveiro Num. 118/21
Relé da bomba de combustível, Aparelho de comando 4LV (Sistema de Injeção), Injetores dos cilindros 1, 2, 3 e 4, Válvula
magnética I para sistema de depósito de carvão ativo
Esquema elétrico
Edição 10/2001
J537
T121a/64
T2ar/1
T2ar/2
N80
T2bd/2 T2be/2 T2bf/2 T2bg/2
T2be/1 T2bg/1
N30
N31
N32
N33
T2bd/1 T2bf/1
J17
T9e/2
30
T9e/4
86
T9e/8
87
T9e/6
85
T121a/97
T121a/
96
T121a/
88
T121a/89 T121a/65
157
70 281
E44
E45
0,35
br/ws
0,35
br/ge
0,35
gn/ro
0,35
gn/ge
0,35
gn/sw
0,35
gn/bl
2,5
ro/bl
1,0
sw/ro
1,0
sw/ro
1,0
sw/ro
1,0
sw/ro
1,5
sw/ro
2,5
sw/ro
1,0
sw/ro
2,5
sw/ro
1,5
sw/ro
214
1,0
sw
T121a/48
62
0,35
gr/gn
0,35
gr/gn
T10e/10
E44
E45
ws = branco
sw = preto
ro = vermelho
br = marrom
gn = verde
bl = azul
gr = cinza
li = lilás
ge = amarelo
97-71184
281 282 283 289 290 291 292 293 294
284 285 286 287 288
Num. 63/22 Gol/Parati/Saveiro
Esquema elétrico
Edição 10/2001
G28 - Transmissor das rotações do motor
G39 - Sonda lambda
G79 - Transmissor para posição do pedal do acelerador
G185 - Transmissor -2- para posição do pedal do acelerador
J537 - Aparelho de comando 4LV (Sistema de Injeção)
T3s - Conector de encaixe, triplo, próximo ao motor de
partida
T4i - Conector de encaixe, quádruplo, atrás no
compartimento do motor
T6h - Conector de encaixe, sêxtuplo, no transmissor para
posição do pedal do acelerador
T8l - Conector de encaixe, óctuplo, atrás do revestimento
da coluna de direção
T10e - Conector de encaixe, décuplo, (vermelho) atrás do
porta-objetos - lado do acompanhante
T121a- Conector de encaixe, 121 pólos, no aparelho de
comando 4LV (Sistema de Injeção)
Transmissor das rotações do motor, Sonda lambda, Transmissor para posição do pedal do acelerador, Transmissor -2- para
posição do pedal do acelerador, Aparelho de comando 4LV (Sistema de Injeção)
λ
G39
T4i/3
T4i/2 T4i/4
278
0,35
gr/ws
1,5
sw/ro
T121a/
68
T121a/
89
T121a/83
0,35
gr/ro
0,35
br
T4i/1
T121a/
82
0,35
sw/gn
0,35
sw/bl
244
0,35
br/bl
T3s/
3
T3s/
2
T121a/
34
T121a/
72
T121a/
33
T121a/
73
T121a/
35
T121a/
36
G79
T6h/6 T6h/1 T6h/5 T6h/2 T6h/4 T6h/3
0,35
sw/ws
0,35
sw/bl
0,35
ro
0,35
gr
0,35
gn/ws
0,35
ge/sw
T10e/
6
T10e/
1
T10e/
5
T10e/
2
T10e/
4
0,5
sw/ws
0,5
sw/bl
0,5
ro
0,5
gr
0,5
gn/ws
0,5
ge/sw
T8l/
6
T8l/
1
T8l/
5
T8l/
2
T8l/
4
0,5
sw/ws
0,5
sw/bl
0,5
ro
0,5
gr
0,5
gn/ws
0,5
ge/sw
T3s/
1
T8l/
3
T121a/
87
T10e/
3
G28
G185
J537

56612171-Esquema-Eletrico-Do-Gol.pdf

  • 1.
    Gol/Parati/Saveiro Num. 118/1 EquipamentoBásico - 1,0 l - 4LV/48 kW, código de identificação do motor AZN, somente Gol a partir de agosto de 2001 Esquema elétrico Edição 10/2001 Posicionamento dos fusíveis S1 - Buzina (10A) S2 - Lâmpada do farol esq. de luz baixa (10A) S4 - Ventilador para líq. de arrefecimento (30A) S5 - Lâmpada do farol direito de luz baixa (10A) S6 - Relógio/lanterna do compartimento de bagagem/lanterna interna/rádio (10A) S7 - Lâmpada do farolete direito/lâmpada da luz traseira direita (4A) S8 - Interruptor das luzes/luz de advertência, lampejador dos faróis/luz de freio (15A) S13 - Módulo do sistema de injeção eletrônica/ válvula do filtro do carvão ativado (15A) S14 - Bomba de combustível (15A) S15 - Farol alto direito/ lâmpada de controle do farol alto (15A) S16 - Farol alto esquerdo (15A) S17 - Motor do limpador do pára-brisa (15A) S19 - Tomada 12V (15A) S20 - Lâmpada do farolete esquerdo/lâmpada da luz traseira esquerda (4A) S21 - Iluminação do cinzeiro e acendedor de cigarros/lant. da placa de licença/lant. do porta-luvas/luz indicadora do funcionamento das lanternas (4A) S22 - Aquecimento do vidro traseiro (25A) S223 - Motor do limpador do vidro traseiro (10A) S224 - Ventilador para ar natural (25A) S225 - Acendedor de cigarros/lâmpada para iluminação do acendedor de cigarros (10A) S227- Indicadores de direção/luzes indicadoras/ velocímetro/indicadores do nível de combustível e da temperatura do líqüido de arrefecimento (10A) S228 - Lâmpada do farolete esquerdo/direito da marcha-à-ré (10A) Posicionamento dos relés Relé para sistema automático intermitente do limpador e lavador (vermelho) Relé para limpador e lavador do vidro traseiro (laranja) Relé da luz de advertência (amarelo) Relé aliviador para contato X (preto) R1 R2 R5 R7 Nota: Os códigos S1 a S22 estão representando os fusíveis (1 a 22), respectivamente, na central elétrica. Os códigos S223 a S228 estão representando os fusíveis (23 a 28), respectivamente, na central elétrica. Nota: Os relés têm a mesma cor de indicação de sua cor na posição de encaixe na central elétrica Central elétrica/vista de frente >PA 6 GF30< Spare fuses Reserva 10 11 12 13 14 28 27 26 25 24 23 22 21 20 19 18 17 16 15 9 8 7 6 5 4 3 2 1 97-70001 Central elétrica/vista de cima R1 R2 R3 R4 6 4 8 2 2 4 6 8 5 3 4 8 5 6 2 4 6 5 8 3 2 R5 R6 R7 2 4 8 6 6 2 8 4 Disjuntor >PA 6 GF30< 2 4 6 8 97-71399 Cor dos Fusíveis 4 ampères - rosa 5 ampères - marrom claro ou bronze 10 ampères - vermelho 15 ampères - azul 20 ampères - amarelo 25 ampères - incolor ou branco 30 ampères - verde 40 ampères - laranja
  • 2.
    A - Bateria B- Motor de partida C - Alternador C1 - Regulador de tensão T1ag - Conector de encaixe, simples, no motor de partida T2bo - Conector de encaixe, duplo, no alternador T2v - Conector de encaixe, duplo, próximo à bateria - Cabo-massa, bateria - carroceria - Conexão à massa, próximo à bateria - Ligação aparafusada -1- (30) na placa dos relés - Ligação aparafusada -2- (30) na placa dos relés - Ligação (B+) no chicote/jogo de cabos do alternador - Ligação positiva (30) no porta-fusíveis/bateria Num. 118/2 Gol/Parati/Saveiro Bateria, Motor de partida, Alternador, Regulador de tensão 10 11 12 13 14 M 4,0 sw/ro B/4 4,0 sw/ro B 30 T2v/1 E2/5 97-71164 1 2 3 4 5 6 7 8 9 91 29 6,0 ro 0,5 bl + - A C C1 25,0 ro T2bo/1 25,0 ro 4,0 ro 4,0 ro 0,5 bl T2v/2 B D Esquema elétrico Edição 10/2001 1 500 501 P1 1 P1 501 500 49 30 a b D26 49 D26 G ws = branco sw = preto ro = vermelho br = marrom gn = verde bl = azul gr = cinza li = lilás ge = amarelo 25,0 sw 6,0 br 218 2,5 br T1ag/ 50
  • 3.
    ws = branco sw= preto ro = vermelho br = marrom gn = verde bl = azul gr = cinza li = lilás ge = amarelo 97-71165 15 16 17 18 19 20 21 22 23 24 25 26 27 28 Num. 118/3 Gol/Parati/Saveiro Comutador de ignição e partida, Bobina de leitura para imobilizador, Relé aliviador para contato X, Aparelho de comando do imobilizador Esquema elétrico Edição 10/2001 a b D - Comutador de ignição e partida D2 - Bobina de leitura para imobilizador E165 - Comutador para destrancamento da tampa traseira J59 - Relé aliviador para contato X J362 - Aparelho de comando do imobilizador R - Auto-rádio T2bp - Conector de encaixe, duplo, no aparelho de comando do imobilizador T6m - Conector de encaixe, sêxtuplo, no comutador para destrancamento da tampa traseira T7c - Conector de encaixe, sétuplo, no comutador de ignição e partida T8g - Conector de encaixe, óctuplo, no aparelho de comando do imobilizador T8h - Conector de encaixe, óctuplo, no auto-rádio T10g - Conector de encaixe, décuplo, (preto) atrás do porta- objetos - lado do acompanhante T16a - Conector de encaixe, 16 pólos, atrás do porta-objetos, lado do condutor, conexão do auto-diagnóstico - Ligação positiva (15) no chicote/jogo de cabos do painel - Ligação (cabo de diagnóstico K) no chicote/jogo de cabos do painel - Ligação (SU) no chicote/jogo de cabos de painel A76 T8h/4 D C1/1 C1/3 C2/2 C2/3 T7c/3 30 T7c/1 x T7c/4 50 T7c/5 15 T7c/2 S R 1,5 sw 0,5 bl/sw 212 45 T8g/8 T8g/2 E165 1,5 sw J362 188 T2bp/1 T2bp/2 T8g/4 T8g/7 T8g/6 8/x 2/30 6/x 4/31 J59 T6m/4 T10g/5 R7 A2 A78 4,0 sw/ro 1,5 sw/ro 1,5 sw 4,0 ro 0,35 bl/sw 1,0 bl/ws 1,0 br 0,35 sw 0,35 ws 1,0 bl/gn 1,0 sw 30 1,0 sw 1,5 sw 0,35 bl/ws 30 30 15 X 31 c T16a/7 K A76 A2 A78 0,5 bl/sw 0,35 bl/ws 1,0 bl/ws 265 T10g/ 2 226 229 1,0 sw 1,0 sw D2
  • 4.
    ws = branco sw= preto ro = vermelho br = marrom gn = verde bl = azul gr = cinza li = lilás ge = amarelo 97-71466 F9 - Interruptor para controle do freio de estacionamento F22 - Interruptor da pressão do óleo (0,3 bar) F34 - Contato de advertência para nível do óleo do freio J285 - Aparelho de comando com unidade indicadora na caixa do conjunto dos instrumentos do painel K - Caixa do conjunto dos instrumentos K2 - Lâmpada de controle do alternador K3 - Lâmpada de controle da pressão do óleo K14 - Lâmpada de controle do freio de estacionamento K28 - Lâmpada de controle da temperatura do líquido de arrefecimento/falta de líquido de arrefecimento K94 - Lâmpada de controle dos indicadores de direção direita K117 - Lâmpada de controle do imobilizador T1f - Conector de encaixe, simples, no contato de advertência para nível do óleo do freio T1g - Conector de encaixe, simples, no contato de advertência para nível do óleo do freio T1r - Conector de encaixe, simples, no interruptor para controle do freio de estacionamento 29 30 31 32 33 34 35 36 37 38 39 40 41 42 Num. 118/4 Gol/Parati/Saveiro Esquema elétrico Edição 10/2001 T1x - Conector de encaixe, simples, no interruptor da pressão do óleo T6e - Conector de encaixe, sêxtuplo, (marrom) ao lado da placa dos relés T6k - Conector de encaixe, sêxtuplo, (lilás) ao lado da placa dos relés T10f - Conector de encaixe, décuplo, (marrom) atrás do porta-objetos - lado do acompanhante T10g - Conector de encaixe, décuplo, (preto) atrás do porta- objetos - lado do acompanhante T32a - Conector de encaixe, 32 pólos, na caixa do conjunto de instrumentos - Ligação -2- (54) no chicote/jogo de cabos do painel A89 Inter. p/ controle do freio de estacionamento, Inter. da pressão do óleo (0,3 bar), Contato de advert. p/ nível do óleo do freio, Conta-giros, Caixa do conj. dos instr., Lâmp. de controle do alternador/ da pressão do óleo/ do freio de estacionamento/ da temperatura do líquido de arrefecimento/falta de líquido de arref./ dos indic. de direção direita/ do imobilizador 8 T6e/2 J285 K117 K2 T32a/ 16 T32a/11 K K28 K94 T32a/29 K3 K14 T32a/ 15 T32a/ 12 0,35 bl 0,35 gn 0,5 bl 0,35 bl/sw 24 0,35 gn 30 15 X 31 c 30 15 X 31 c T1r T1g T1f 90 F9 F34 T6k/ 6 T6e/4 A89 0,35 br/ro 1,0 br/ro 0,5 br/ro 0,5 br/ro 1,0 br/ro 1,0 br T1x F22 0,35 br/gn 1,0 br/gn 183 T32a/26 0,35 gr 140 0,35 sw/gn T32a/ 4 T32a/ 3 89 0,35 sw T10g/ 3 222 T10f/ 3
  • 5.
    ws = branco sw= preto ro = vermelho br = marrom gn = verde bl = azul gr = cinza li = lilás ge = amarelo 97-71479 J285 - Aparelho de comando com unidade indicadora na caixa do conjunto dos instrumentos do painel K - Caixa do conjunto dos instrumentos K1 - Lâmpada de controle dos faróis altos K10 - Lâmpada de controle do aquecimento do vidro traseiro K65 - Lâmpada de controle para luz de advertência e indicadores de direção esquerda T10g - Conector de encaixe, décuplo, (preto) atrás do porta- objetos - lado do acompanhante T16a - Conector de encaixe, 16 pólos, atrás do porta-objetos, lado do condutor, conexão do auto-diagnóstico T32a - Conector de encaixe, 32 pólos, na caixa do conjunto de instrumentos Y4 - Odômetro - Conexão à massa, coluna A - esquerda embaixo - Ligação à massa -1- no chicote/jogo de cabos do painel 43 44 45 46 47 48 49 54 55 56 50 51 52 53 J285 Gol/Parati/Saveiro Num. 118/5 Esquema elétrico Edição 10/2001 44 81 K Ap. de comando com unidade indic. na caixa do conjunto dos instrumentos do painel, Caixa do conj. dos instr., Lâmpada de controle dos faróis altos/ do aquecimento do vidro traseiro/ para luz de advertência e indicadores de direção esquerda K10 K1 Y4 T10g/6 0,35 ge/br 1,0 ge/br 128 0,35 ws/bl 0,35 sw/ws 124 0,35 br 0,35 br 44 4,0 br T16a/4 31a 0,5 br 81 125 1,0 br 0,35 bl/ws 30 15 X 31 c 30 15 X 31 c 220 26 T32a/28 T32a/25 T32a/30 T32a/9 T32a/24 177 0,35 ro K65 T32a/31 T32a/ 23 T32a/ 14 204 0,35 sw/bl
  • 6.
    ws = branco sw= preto ro = vermelho br = marrom gn = verde bl = azul gr = cinza li = lilás ge = amarelo 97-71168 G - Transmissor do indicador do nível combustível G1 - Indicador do nível de combustível G3 - Indicador da temperatura para líquido de arrefecimento G6 - Bomba de combustível J285 - Aparelho de comando com unidade indicadora na caixa do conjunto dos instrumentos do painel K - Caixa do conjunto dos instrumentos K132 - Lâmpada indicadora de avaria no acionamento elétrico da aceleração R - Auto-rádio T1o - Conector de encaixe, simples, na coluna A - direita embaixo T4g - Conector de encaixe, quádruplo, sob o banco traseiro, direita T6k - Conector de encaixe, sêxtuplo, (lilás) ao lado da placa dos relés T6q - Conector de encaixe, sêxtuplo, (branco) próximo ao encaixe dos reles T8h - Conector de encaixe, óctuplo, no auto-rádio 57 58 59 60 61 62 63 64 65 66 67 68 69 70 J285 Num. 118/6 Gol/Parati/Saveiro Esquema elétrico Edição 10/2001 T10f - Conector de encaixe, décuplo, (marron) atrás do porta- objetos - lado do acompanhante T32a - Conector de encaixe, 32 pólos, na caixa do conjunto de instrumentos - Conexão à massa, coluna A - esquerda embaixo - Ligação à massa -5- no chicote/jogo de cabos do painel - Ligação positiva (58b) no chicote/jogo de cabos do painel - Ligação (56) no chicote/jogo de cabos do painel A4 A51 K Transmissor do indicador do nível combustível, Indicador do nível de combustível, Indicador da temperatura para líquido de arrefecimento, Bomba de combustível, Aparelho de comando com unidade indicadora na caixa do conjunto dos instrumentos do painel, Caixa do conjunto dos instrumentos, Lâmpada indicadora de avaria no acionamento elétrico da aceleração T32a/5 G3 G1 T32a/ 8 M G G6 T6k/ 5 T4g/2 T4g/4 T4g/ 1 T4g/3 30 15 X 31 c 30 15 X 31 c 119 75 A51 0,35 ws/gn 2,5 ws/sw 2,5 ws/gn T32a/20 126 167 A4 0,35 gr/ge 0,5 bl 0,5 bl 0,5 sw 0,5 ro 2,5 ro 2,5 sw/ro 2,5 br 0,5 br/sw 0,35 br/sw T6q/ 1 0,5 br 0,35 br/ws 1,0 br 0,5 br 0,35 br/li 335 335 240 273 44 T1o T10f/2 1,0 br/ws 239 K132 T32a/ 7 T32a/ 32 274 0,35 gr/gn T32a/ 27 0,5 gr/ge T8h/6 0,5 gr/gn R 1,0 gr/ge 44
  • 7.
    ws = branco sw= preto ro = vermelho br = marrom gn = verde bl = azul gr = cinza li = lilás ge = amarelo Gol/Parati/Saveiro Num. 118/7 97-71169 71 72 73 74 75 76 77 78 79 80 81 82 83 84 Esquema elétrico Edição 10/2001 E2 - Interruptor das luzes intermitentes/indicadores de direção E3 - Interruptor da luz de advertência E4 - Comutador manual de luz alta e baixa J2 - Relé da luz de advertência K6 - Lâmpada de controle das luzes intermitentes de advertência S8 - Fusível do interruptor das luzes/luz de advertência, lampejador dos faróis/luz de freio (15A) T5b - Conector de encaixe, quíntuplo, no comutador manual de luz alta e baixa T7b - Conector de encaixe, sétuplo, no interruptor das luzes intermitentes T8j - Conector de encaixe, óctuplo, no interruptor da luz de advertência - Ligação positiva (30a) no chicote/jogo de cabos do painel - Ligação (49a) no chicote/jogo de cabos do painel A1 A157 Interruptor das luzes intermitentes/indicadores de direção, Interruptor da luz de advertência, Comutador manual de luz alta e baixa, Relé dos indicadores de direção 79 58 81 129 142 E4 E2 56a T5b/4 30 T5b/5 56 T5b/3 49a T7b/2 56b T5b/2 L T7b/3 R T7b/7 2,5 ge 1,0 sw/ws 1,0 sw/gn S8 15A C2/1 C4/1 C3/4 A1 A157 1,0 ro 1,0 sw/ro 231 2,5 ws 127 1,0 ro/bl 1,5 ro 1,0 ro 2,5 ws/gn 1,0 sw/ws 1,0 sw/ro E3 K6 T8j/2 49 T8j/1 15 T8j/4 31 T8j/8 58b T8j/7 49a T8j/5 R T8j/6 L T8j/3 30 C2/5 C3/7 J2 6/31 8/49a 2/+49 R5 1,0 sw/br 1,5 sw 196 185 77 143 130 73 1,5 br 0,5 gr/ge 1,0 sw/ro 1,0 sw/gn 1,0 sw/ws 1,0 ro 30 15 X 31 c 30 15 X 31 c d e
  • 8.
    ws = branco sw= preto ro = vermelho br = marrom gn = verde bl = azul gr = cinza li = lilás ge = amarelo S13 - Fusível do módulo do sistema de injeção eletrônica/ válvula do filtro do carvão ativado (15A) S17 - Fusível do motor do limpador do pára-brisa (15A) S227 - Fusível do indicadores de direção/luzes indicadoras/ velocímetro/indicadores do nível de combustível e da temperatura do líqüido de arrefecimento (10A) T5k - Conector de encaixe, quíntuplo, no motor do limpador do pára-brisa T10g - Conector de encaixe, décuplo, (preto) atrás do porta- objetos - lado do acompanhante T16a - Conector de encaixe, 16 pólos, atrás do porta-objetos, lado do condutor, conexão do auto-diagnóstico V - Motor do limpador do pára-brisa - Conexão à massa, coluna A - esquerda embaixo - Ligação à massa no chicote/jogo de cabos dianteiro esquerdo - Ligação positiva -2- (30a) no chicote/jogo de cabos do painel 97-71170 85 86 87 88 89 90 91 92 93 94 95 96 97 98 37 3 B/8 1,0 br 6,0 br 6,0 br Num. 118/8 Gol/Parati/Saveiro Esquema elétrico Edição 10/2001 44 82 82 44 e Motor do limpador do pára-brisa C2/7 S227 10A 0,35 sw 30 15 X 31 c 30 15 X 31 c d d A/1 S13 15A T16a/16 30a T10g/1 A164 1,0 br 2,5 ro 2,5 ro 1,0 ro 1,5 ro 40 99 100 E2/2 E2/7 S17 15A V T5k/4 31b T5k/3 53a T5k/2 53b T5k/1 53 T5k/5 31 M 1,0 sw 1,0 sw/li 1,0 ro 1,0 gn 1,0 br f g A164 242
  • 9.
    ws = branco sw= preto ro = vermelho br = marrom gn = verde bl = azul gr = cinza li = lilás ge = amarelo E 97-71171 99 100 101 102 103 104 105 106 107 108 109 110 111 112 Gol/Parati/Saveiro Num. 118/9 Esquema elétrico Edição 10/2001 Interruptor do limpador do pára-brisa com ligação para funcionamento intermitente, Relé para limpador e lavador do vidro traseiro, Relé para sistema automático intermitente do limpador e lavador 30 15 X 31 c 30 15 X c d d 96 97 187 C3/1 C3/6 C4/8 C4/2 C1/6 D/1 M T2s/2 T2s/1 1,0 br V12 D/2 T2am/2 1,0 ro 1,0 sw T6d/1 1,0 sw/ro 1,0 sw/ro V59 E22 S223 10A 2/53m 6/31 4/t 1/i 8/15a 5/53S J31 6/31 4/L 8/15 T6d/6 T2dm/ 1 T2dm/ 2 T2am/ 1 T5a/1 53b T5a/4 53e T5a/2 53a T5a/5 i T4c/2 t T4c/1 h 53 T5a/3 31 T4c/3 T6d/5 T6d/2 J30 2/53 R2 R1 A159 A158 52 M 1,0 gn 1,0 gn 1,5 br f g E22 - Interruptor do limpador do pára-brisa com ligação para funcionamento intermitente J30 - Relé para limpador e lavador do vidro traseiro J31 - Relé para sistema automático intermitente do limpador e lavador S223 - Fusível do motor do limpador do vidro traseiro (10A) T2am - Conector de encaixe, duplo, no motor do limpador do vidro traseiro T2dm - Conector de encaixe, duplo, atrás do revestimento traseiro esquerdo, próximo à caixa de roda T2s - Conector de encaixe, duplo, na bomba do lavador do pára-brisa e do vidro traseiro T4c - Conector de encaixe, quádruplo, no interruptor do limpador do pára-brisa com ligação para funcionamento intermitente T5a - Conector de encaixe, quíntuplo, no interruptor do limpador do pára-brisa com ligação para funcionamento intermitente T6d - Conector de encaixe, sêxtuplo, (preto) ao lado da placa dos relés V12 - Motor do limpador do vidro traseiro V59 - Bomba do lavador do pára-brisa e do vidro traseiro - Conexão à massa na tampa traseira - Ligação (T) no chicote/jogo de cabos do painel - Ligação (L) no chicote/jogo de cabos do painel 52 A158 A159 1,5 sw/ge 1,5 gn 1,5 sw/ge 1,5 gn 1,0 sw/ge 1,0 sw/li 1,0 sw/gn 1,0 sw 1,0 sw 1,0 sw/ro 1,0 ro 1,0 sw 1,0 sw/ro
  • 10.
    ws = branco sw= preto ro = vermelho br = marrom gn = verde bl = azul gr = cinza li = lilás ge = amarelo 97-71172 113 114 115 116 117 118 119 120 121 122 123 124 125 126 Num. 118/10 Gol/Parati/Saveiro Esquema elétrico Edição 10/2001 E1 - Interruptor das luzes L9 - Lâmpada para iluminação do interruptor das luzes S21 - Fusível da iluminação do cinzeiro e acendedor de cigarros/lanterna da placa de licença/lanterna do porta-luvas/luz indicadora do funcionamento das lanternas (4A) T2ae - Conector de encaixe, duplo, na luz da placa de licença T17a - Conector de encaixe, 17 pólos, no interruptor das luzes X - Luz da placa de licença Interruptor das luzes, Lâmpada para iluminação do interruptor das luzes, Luz da placa de licença B T17a/7 NSL XR NL 59 57 53 C2/4 C1/4 C4/6 C4/5 C3/5 149 T2ae/1 T2ae/2 D/8 E1 2,5 sw 184 C4/7 58L T17a/ 13 58R T17a/ 14 58 T17a/ 16 T17a/4 56 T17a/17 58d T17a/15 30 T17a/1 XZ T17a/10 31 X L9 TFL S21 4A 30 15 X c d 30 15 X d h i 0,5 br c 1,0 gr/ge 0,5 br 1,5 gr/ge j C3/8 0,5 gr/ge 47 0,35 ws/bl 1,0 gr/gn 1,0 gr/ws 1,0 gr 2,5 ws/sw 1,0 ro
  • 11.
    ws = branco sw= preto ro = vermelho br = marrom gn = verde bl = azul gr = cinza li = lilás ge = amarelo 127 128 129 130 131 132 133 134 135 136 137 138 139 140 L1 - Lâmpada de dois filamentos para farol esquerdo L2 - Lâmpada de dois filamentos para farol direito M1 - Lâmpada do farolete esquerdo M3 - Lâmpada do farolete direito M5 - Lâmpada do indicador de direção dianteiro esquerdo M7 - Lâmpada do indicador de direção dianteiro direito S2 - Fusível do farol esqu. de luz baixa (10A) S5 - Fusível do farol direito de luz baixa (10A) S7 - Fusível da lâmpada do farolete direito/lâmpada da luz traseira direita (4A) S15 - Fusível do farol alto direito/ lâmpada de controle do farol alto (15A) S16 - Fusível do farol alto esquerdo (15A) S20 - Fusível da lâmpada do farolete esquerdo/lâmpada da luz traseira esquerda (4A) T2bz - Conector de encaixe, duplo, na lâmpada do farolete direito T2ca - Conector de encaixe, duplo, na lâmpada do farolete esquerdo T2h - Conector de encaixe, duplo, na lâmpada do indicador de direção dianteiro direito T2n - Conector de encaixe, duplo, na lâmpada do indicador de direção diant. esquerdo T3w - Conector de encaixe, triplo, na lâmpada de dois filamentos para farol esquerdo T3x - Conector de encaixe, triplo, na lâmpada de dois filamentos para farol direito T6d - Conector de encaixe, sêxtuplo, (preto) ao lado da placa dos relés T6k - Conector de encaixe, sêxtuplo, (lilás) ao lado da placa dos relés - Conexão à massa, coluna A - esquerda embaixo - Ligação à massa -2- no chicote/jogo de cabos dianteiro esquerdo - Ligação positiva (indicadores de direção dir.) no chicote/jogo de cabos do painel - Ligação positiva (indicadores de direção esqu.) no chicote/jogo de cabos do painel Gol/Parati/Saveiro Num. 118/11 Esquema elétrico Edição 10/2001 Lâmpada de dois filamentos para farol esquerdo, direito, Lâmpada do farolete esquerdo, direito, Lâmpada do indicador de direção dianteiro esquerdo, direito 97-71173 181 C4/4 56b E1/8 58L E2/3 56a E2/1 56b E1/2 56b E1/4 56a E1/5 58r 74 76 83 49 S20 4A S16 15A S2 10A S5 10A S7 4A D/6 58r A6 44 30 15 X d h i c 30 15 X j l c 6,0 br 151 38 1,0 br 1,5 br 1,5 br 0,5 br T6d/ 4 T2h/1 T2h/2 1,0 br 1,0 br 1,0 sw/ws M3 M7 M5 M1 T2n/1 T2n/2 A5 108 n T2bz/ 1 T2bz/ 2 T6d/ 3 T3x/1 T2ca/ 1 T2ca/ 2 T3x/2 T3x/3 T3w/2 T3w/1 T3w/3 L1 L2 0,5 gr/gn 1,5 ws/sw 1,5 ge 1,5 ge 1,5 ws/ro 0,5 gr/ws 2,5 ge 0,5 gr/ws 1,0 sw/gn 0,35 sw/gn 1,0 sw/gn 1,0 sw/ws 145 T6k/ 1 1,0 sw/ws 1,0 sw/ws 0,35 sw/ws 1,0 sw/ws 1,0 sw/ws 4,0 br S15 15A A6 A5 108 44
  • 12.
    ws = branco sw= preto ro = vermelho br = marrom gn = verde bl = azul gr = cinza li = lilás ge = amarelo 97-71174 141 142 143 144 145 146 147 150 151 152 153 154 148 149 Num. 118/12 Gol/Parati/Saveiro Esquema elétrico Edição 10/2001 F4 - Interruptor dos faroletes de marcha-à-ré M2 - Lâmpada da luz traseira direita M4 - Lâmpada da luz traseira esquerda M6 - Lâmpada do indicador de direção traseiro esquerdo M8 - Lâmpada do indicador de direção traseiro direito M9 - Lâmpada da luz do freio esquerdo M10 - Lâmpada da luz do freio direito M16 - Lâmpada do farolete esquerdo da marcha-à-ré M17 - Lâmpada do farolete direito de marcha-à-ré S228 - Fusível da lâmpada do farolete esquerdo/direito de marcha-à-ré (10A) T2ax - Conector de encaixe, duplo, no interruptor dos faroletes de marcha-à-ré T5l - Conector de encaixe, quíntuplo, na luz traseira esq. T5m - Conector de encaixe, quíntuplo, na luz traseira direita T6e - Conector de encaixe, sêxtuplo, (marrom) ao lado da placa dos relés T6k - Conector de encaixe, sêxtuplo, (lilás) ao lado da placa dos relés T10g - Conector de encaixe, décuplo, (preto) atrás do porta- objetos - lado do acompanhante - Conexão à massa no porta-malas - Ligação à massa -5- no chicote/jogo de cabos traseiro - Ligação positiva (indicadores de direção dir.) no chicote/jogo de cabos do painel - Ligação positiva -1- (54) no chicote/ jogo de cabos traseiro - Ligação (RF) no chicote/jogo de cabos traseiro Interrup. da luz do freio, dos faroletes de marcha-à-ré, Lâmp.da luz tras. dir., da luz traseira esq., do ind. de direção tras. esq., do ind. de direção tras.dir., da luz do freio esq., da luz do freio dir., do farolete esq.da marcha-à-ré, dir.de marcha-à-ré F4 T5m/4 T5m/1 D/7 B/7 30 15 X l 30 X c c 131 W66 234 A5 T6e/1 W1 141 T6k/3 139 T5l/4 M4 T5l/1 M6 T5l/5 T5l/2 T5m/2 M16 M9 M10 T5l/3 T5m/3 150 82 78 122 51 333 T5m/5 M17 T2ax/1 T2ax/2 M8 M2 T10g/9 S228 10A n 1,0 sw/bl 1,0 sw 1,0 sw/gn 1,0 sw/gn 1,0 sw/gn 0,5 gr/gn 1,0 sw/ro 1,0 sw 1,0 sw/bl 0,5 gr/ws 1,0 sw/gn 1,0 sw 1,0 sw 1,0 sw/ws 1,0 sw/gn 1,0 br 1,0 br 1,0 sw 1,0 sw/bl 0,5 br 4,0 br 51 333 A5 W1 T10g/ 10 T6k/2 W66 1,0 sw/ro 1,0 sw/ro
  • 13.
    ws = branco sw= preto ro = vermelho br = marrom gn = verde bl = azul gr = cinza li = lilás ge = amarelo 97-71175 155 156 157 158 159 160 161 162 163 164 165 166 167 168 C3/3 T5u/1 T5u/2 T5u/3 T5u/4 ϑ M T2bm/1 V2 T2bm/2 N24 T5t/1 E9 T8k/4 T8k/3 Num. 118/13 Gol/Parati/Saveiro S224 25A Interruptor do ventilador para ar natural, Lâmpada para iluminação do mecanismo de regulagem da ventilação para ar natural, Pré-resistência do ventilador para ar natural com fusível de sobre-aquecimento, Ventilador para ar natural Esquema elétrico T5t/2 T5t/3 T5t/4 T5t/5 Edição 10/2001 E9 - Interruptor do ventilador para ar natural L16 - Lâmpada para iluminação do mecanismo de regulagem da ventilação para ar natural N24 - Pré-resistência do ventilador para ar natural com fusível de sobre-aquecimento S14 - Fusível da bomba de combustível (15A) S19 - Fusível da tomada 12V (15A) S224 - Fusível do ventilador para ar natural (25A) T2a - Conector de encaixe, duplo, no centro atrás do painel T2bm - Conector de encaixe, duplo, no ventilador para ar natural T5t - Conector de encaixe, quíntuplo, no interruptor do ventilador para ar natural T5u - Conector de encaixe, quíntuplo, na pré-resistência do ventilador para ar natural com fusível de sobre- aquecimento T6q - Conector de encaixe, sêxtuplo, (branco) próximo ao encaixe dos reles T8k - Conector de encaixe, óctuplo, no centro atrás do painel 44 330 330 44 T10g - Conector de encaixe, décuplo, (preto) atrás do porta- objeto - lado do acompanhante V2 - Ventilador para ar natural - Conexão à massa, coluna A - esquerda embaixo - Ligação à massa -1- no chicote/jogo de cabos da caixa de ventilação - Ligação à massa -2- no chicote/jogo de cabos da caixa de ventilação 329 329 2,5 sw/ro 1,0 sw/ro 2,5 br 2,5 br 4,0 br 1,0 sw/ro 1,0 sw/ro 1,0 sw/ro 1,0 sw/ro 2,5 sw/br 1,0 sw/ro 60 L16 L16 T8k/5 T2a/1 T2a/2 0,5 sw 0,5 sw 0,5 sw 0,5 br 0,5 sw 0,5 gr/ge 0,5 gr/ge X X c c 30 30 191 1,0 ro 1,5 ro S19 15A D/4 S14 15A A/4 2,5 ro/bl 276 T6q/4 T10g/4 2,5 ro/bl
  • 14.
    ws = branco sw= preto ro = vermelho br = marrom gn = verde bl = azul gr = cinza li = lilás ge = amarelo 97-71176 F2 - Interruptor de contato da porta - lado do condutor H - Acionador da buzina H1 - Buzina/buzina bisonora H23 - Anel de contato do acionador da buzina J209 - Relé para ventilador do ar natural e ventilador para líquido de arrefecimento R - Auto-rádio S1 - Fusível para buzina (10A) S4 - Fusível para ventilador para líquido de arrefecimento (30A) S6 - Fusível para relógio/lanterna do compartimento de bagagem/lanterna interna/rádio (10A) T1j - Conector de encaixe, simples, na luz do interior dianteira T1k - Conector de encaixe, simples, na luz do interior dianteira T1l - Conector de encaixe, simples, na luz do interior dianteira T1s - Conector de encaixe, simples, no interruptor de contato da porta - lado do condutor T2o - Conector de encaixe, duplo, ventilador para líquido de arrefecimento T2p - Conector de encaixe, duplo, no acionador da buzina 169 170 171 172 173 174 175 176 177 178 179 180 181 182 Num. 118/14 Gol/Parati/Saveiro Esquema elétrico Edição 10/2001 T6e - C. de e., sêxtuplo, (marrom) ao lado da placa dos relés T6g - C. de e., sêxtuplo, (cinza) ao lado da placa dos relés T7b - Conector de encaixe, sétuplo, no anel de contato do acionador da buzina T8h - Conector de encaixe, óctuplo, no auto-rádio T9b - Conector de encaixe, nônuplo, no relé para ventilador do ar natural e ventilador para líquido de arrefecimento T10f - Conector de encaixe, décuplo, (marron) atrás do porta- objeto - lado do acompanhante TV23 - Ponte de encaixe V7 - Ventilador para líquido de arrefecimento W - Luz do interior dianteira - Conexão à massa ao lado da coluna de direção - Conexão à massa, coluna A - esquerda embaixo - Lig. pos. -5- (30a) no chicote/jogo de cabos do painel - Lig. pos. (30a) no chicote/jogo de cabos diant. esq. Interruptor de contato da porta - lado do condutor, Acionador da buzina, Buzina/buzina bisonora, Anel de contato do acionador da buzina, Relé para ventilador do ar natural e ventilador para líquido de arrefecimento E1/1 T2p/1 T2p/2 H1 E2/6 T7b/1 H S4 30A 2/30a 8/87 TV23 S1 10A 6/x H23 42 30 X c X 1,5 br 1,5 sw 1,5 br/ws 1,5 br/ws 1,5 ro/ge 2,5 ro J209 T9b/6 85 T9b/2 30 T9b/4 86 T9b/8 87 137 M T2o/1 T2o/2 V7 2,5 sw/ro 4,0 br 2,5 ro 0,5 ro/ge C55 T6e/3 223 0,5 sw/gn T10f/8 0,5 sw/gn 0,35 ws W T1l T1k T1j T1s F2 44 D/5 S6 10A 56 C1/8 C1/5 0,5 ro 0,35 ro 2,5 ro/bl 2,5 ro/bl 1,0 ro/bl T8h/7 R T8h/5 R 44 A189 42 A189 0,5 br/ws 0,5 br T6g/6 C55
  • 15.
    ws = branco sw= preto ro = vermelho br = marrom gn = verde bl = azul gr = cinza li = lilás ge = amarelo 97-71177 L28 - Lâmpada para iluminação do acendedor de cigarros (isqueiro) L42 - Lâmpada para iluminação da caixa de tomada R - Auto-rádio S225 - Fusível para acendedor de cigarros/lâmpada para iluminação do acendedor de cigarros (10A) T1at - Conector de encaixe, simples, na lâmpada para iluminação da caixa de tomada T1b - Conector de encaixe, simples, na lâmpada para iluminação do acendedor de cigarros T2cw - Conector de encaixe, duplo, no caixa de tomada - 12 volts T2d - Conector de encaixe, duplo, no acendedor de cigarros T8h - Conector de encaxe, óctuplo, no auto-rádio U1 - Acendedor de cigarros (isqueiro) U5 - Caixa de tomada - 12 volts - Conexão à massa, coluna A - direita embaixo - Ligação à massa -3- no chicote/jogo de cabos do painel - Ligação à massa no chicote/jogo de cabos do painel - Ligação (58a) no chicote/jogo de cabos do painel 183 184 185 186 187 188 189 190 191 192 193 194 195 196 Gol/Parati/Saveiro Num. 118/15 Lâmpada para iluminação do acendedor de cigarros (isqueiro), Lâmpada para iluminação da caixa de tomada Esquema elétrico Edição 10/2001 80 121 41 84 T2d/1 U1 T2d/2 T1b L28 104 23 S225 10A C2/8 43 43 199 213 A37 1,0 br T1at L42 T2cw/1 T2cw/2 U5 0,5 gr/ge 1,5 br 166 1,5 ro 1,5 br 1,5 br X 199 0,5 br 0,5 gr/ge 198 0,5 gr/ge X 0,5 br T8h/8 R 43 199 213 A37 0,35 gr 1,5 gr/ge 0,5 gr/ge 1,5 ro 2,5 br 1,5 br 2,5 br
  • 16.
    ws = branco sw= preto ro = vermelho br = marrom gn = verde bl = azul gr = cinza li = lilás ge = amarelo 97-71178 197 198 199 205 206 207 208 209 210 200 201 202 203 204 Num. 118/16 Gol/Parati/Saveiro Esquema elétrico Edição 10/2001 E15 - Comutador para aquecimento do vidro traseiro L39 - Lâmpada para iluminação do interruptor para aquecimento do vidro traseiro S22 - Fusível para aquecimento do vidro traseiro (25A) T1ac - Conector de encaixe, simples, no aquecimento do vidro traseiro T1ad - Conector de encaixe, simples, no aquecimento do vidro traseiro T2dl - Conector de encaixe, duplo, atrás do revestimento traseiro esquerdo, próximo à caixa de roda T4d - Conector de encaixe, quádruplo, no comutador para aquecimento do vidro traseiro T6i - Conector de encaixe, sêxtuplo, (azul) ao lado da placa dos relés Z1 - Aquecimento do vidro traseiro - Conexão à massa, coluna A - esquerda embaixo - Conexão à massa na tampa traseira - Ligação à massa -2- no chicote/jogo de cabos traseiro - Ligação à massa -2- no chicote/jogo de cabos da tampa traseira - Ligação à massa -2- no chicote/jogo de cabos da tampa traseira Comutador para aquecimento do vidro traseiro, Lâmpada para iluminação do interruptor para aquecimento do vidro traseiro C4/3 193 186 55 T4d/2 T4d/3 T4d/1 T4d/4 E15 T2dl/1 T6i/4 T2dl/2 S22 25A Z1 T1ac T1ad 52 218 A82 L39 87 44 2,5 br 2,5 sw 2,5 br 0,5 gr/ge 2,5 sw 2,5 sw/bl 0,35 sw/bl 2,5 sw 2,5 br 0,5 br 2,5 sw X 2,5 br 44 52 87 A82 2,5 sw 218
  • 17.
    ws = branco sw= preto ro = vermelho br = marrom gn = verde bl = azul gr = cinza li = lilás ge = amarelo 97-71179 G22 - Transmissor do velocímetro J537 - Aparelho de comando 4LV (Sistema de Injeção) T3g - Conector de encaixe, triplo, no transmissor do velocímetro T121a- Conector de encaixe, 121 pólos, no aparelho de comando 4LV (Sistema de Injeção) - Ligação à massa no chicote/jogo de cabos do sistema de injeção - Ligação (transmissor de velocidade) no chicote/jogo de cabos do sistema de injeção - Ligação positiva (15) no chicote/jogo de cabos da injeção 211 212 213 214 215 216 217 218 219 220 221 222 223 224 Gol/Parati/Saveiro Num. 118/17 Transmissor do velocímetro, Aparelho de comando 4LV (Sistema de Injeção) Esquema elétrico Edição 10/2001 J537 T3g/2 G22 T3g/1 T3g/3 18 261 277 T121a/4 T121a/ 1 4 262 T121a/2 1,0 br 1,5 sw 1,5 sw 1,0 sw 1,0 sw 1,0 br 1,5 sw 1,0 br 2,5 br 2,5 br 43 1,0 ge/br 1,0 ge/br 0,35 ge/br E41 331 E40 T121a/47 178 0,35 ws T121a/ 54 T121a/ 37 31 0,35 gn 331 E40 E41
  • 18.
    ws = branco sw= preto ro = vermelho br = marrom gn = verde bl = azul gr = cinza li = lilás ge = amarelo 97-71180 225 226 227 233 234 235 236 237 238 228 229 230 231 232 Num. 118/18 Gol/Parati/Saveiro Esquema elétrico Edição 10/2001 F - Interruptor da luz do freio F36 - Interruptor do pedal da embreagem F47 - Interruptor do pedal do freio para RV G61 - Sensor de batida I J537 - Aparelho de comando 4LV (Sistema de Injeção) T2au - Conector de encaixe, duplo, no sensor de batida l T4t - Conector de encaixe, quádruplo, no interruptor da luz do freio T4u - Conector de encaixe, quádruplo, no interruptor do pedal da embreagem T6k - Conector de encaixe, sêxtuplo, (lilás) ao lado da placa dos relés T10e - Conector de encaixe, décuplo, (vermelho) atrás do porta-objetos - lado do acompanhante T121a- Conector de encaixe, 121 pólos, no aparelho de comando 4LV (Sistema de Injeção) - Ligação (54) no chicote/jogo de cabos do painel - Ligação (cabo blindado) no chicote/jogo de cabos da injeção Interruptor da luz do freio, Interruptor do pedal da embreagem, Interruptor do pedal do freio para RV, Sensor de batida I, Aparelho de comando 4LV (Sistema de Injeção) J537 T121a/39 T121a/55 T4t/2 T4t/4 T4u/2 T4u/1 T4t/3 F36 F F47 T10e/7 15 17 1,0 sw 0,35 gn/ro 1,0 sw 0,35 ws/gn 0,5 ws/gn T10e/9 0,5 gn/ro 1,0 sw/ro 147 1,0 sw/ro T121a/56 T10e/8 0,35 ro/sw 0,5 ro/sw T6k/4 1,0 sw/ro A18 T121a/ 99 T121a/106 0,35 sw 0,35 ge 0,5 sw 0,35 gn G61 E52 T4t/1 72 1,0 ro/bl T2au/ 2 T2au/1 A18 E52
  • 19.
    ws = branco sw= preto ro = vermelho br = marrom gn = verde bl = azul gr = cinza li = lilás ge = amarelo 97-71181 G2 - Transmissor para temperatura do líquido de arrefecimento G40 - Transmissor Hall G42 - Transmissor para temperatura do ar aspirado G62 - Transmissor para temperatura do líquido de arrefecimento G71 - Transmissor para pressão do coletor de admissão J537 - Aparelho de comando 4LV (Sistema de Injeção) T3q - Conector de encaixe, triplo, no transmissor hall T4j - Conector de encaixe, quádruplo, no transmissor para pressão do coletor de admissão T4k - Conector de encaixe, quádruplo, no transmissor para temperatura do líquido de arrefecimento T10g - Conector de encaixe, décuplo, (preto) atrás do porta- objeto - lado do acompanhante T121a- Conector de encaixe, 121 pólos, no aparelho de comando 4LV (Sistema de Injeção) - Ligação à massa (massa do transmissor) no chicote/ jogo de cabos da injeção 239 240 241 242 243 244 245 246 247 248 249 250 251 252 Gol/Parati/Saveiro Num. 11819 Transmissor para temperatura do líquido de arrefecimento, Transmissor Hall, Transmissor para temperatura do ar aspirado/ temperatura do líquido de arrefecimento/ pressão do coletor de admissão, Aparelho de comando 4LV (Sistema de Injeção) Esquema elétrico Edição 10/2001 J537 ϑ ϑ T4k/1 T4k/4 T4k/2 T4k/3 1,0 br T10g/ 7 66 0,35 br/gn 1,0 br 64 1,0 br/ws 0,35 br/bl 0,35 br/bl 0,35 br/bl 0,35 br/bl T121a/108 285 339 0,35 br/bl G71 G42 T4j/4 T4j/2 T121a/109 0,35 br/sw T121a/ 85 0,35 br/ro 0,35 bl T3q/3 T3q/ 1 0,35 bl/ws T121a/98 0,35 bl T4j/1 E46 T3q/2 T121a/86 0,35 br/gr G40 T121a/ 93 T121a/ 3 87 1,5 ro ϑ G62 G2 T4j/3 339 E46 - Ligação positiva -1- (5 Volt) no chicote/jogo de cabos da injeção
  • 20.
    ws = branco sw= preto ro = vermelho br = marrom gn = verde bl = azul gr = cinza li = lilás ge = amarelo 97-71182 253 254 255 261 262 263 264 265 266 256 257 258 259 260 Num. 118/20 Gol/Parati/Saveiro Esquema elétrico Edição 10/2001 G186 - Comando da válvula borboleta do acelerador (aceleração elétrica) G187 - Transmissor do ângulo de posição -1- para comando da válvula borboleta do acelerador (aceleração elétrica) G188 - Transmissor do ângulo de posição -2- para comando da válvula borboleta do acelerador (aceleração elétrica) J338 - Unidade de comando da válvula borboleta do acelerador J537 - Aparelho de comando 4LV (Sistema de Injeção) N152 - Transformador de ignição P - Conectores das velas Q - Velas T4w - Conector de encaixe, quádruplo, no transformador de ignição T6x - Conector de encaixe, sêxtuplo, na unidade de comando da válvula borboleta do acelerador T121a- Conector de encaixe, 121 pólos, no aparelho de comando 4LV (Sistema de Injeção) Comando da válvula borboleta do acelerador (aceleração elétrica), Transmissor do ângulo de posição -1- para comando da válvula borboleta do acelerador (aceleração elétrica), Transmissor do ângulo de posição -2- para comando da válvula borboleta do acelerador (aceleração elétrica), Unidade de comando da válvula borboleta do acelerador, Aparelho de comando 4LV (Sistema de Injeção), Transformador de ignição J537 T121a/91 G186 G187 G188 T6x/3 T6x/5 T6x/1 T6x/2 T6x/4 T6x/6 J338 T121a/ 117 T121a/ 118 T121a/ 92 T121a/ 83 T121a/ 84 1,0 bl/sw 1,0 bl/ge 0,35 ws/sw 0,35 ws/ro 0,35 br/ge 0,35 bl/gn P Q N152 T4w/1 T4w/3 T4w/4 T4w/2 T121a/ 103 0,35 sw/ro 0,35 bl/ro 219 213 1,5 sw 2,5 br T121a/ 102 T121a/43 25 0,35 bl/ws M
  • 21.
    ws = branco sw= preto ro = vermelho br = marrom gn = verde bl = azul gr = cinza li = lilás ge = amarelo 97-71183 J17 - Relé da bomba de combustível J537 - Aparelho de comando 4LV (Sistema de Injeção) N30 - Injetor do cilindro 1 N31 - Injetor do cilindro 2 N32 - Injetor do cilindro 3 N33 - Injetor do cilindro 4 N80 - Válvula magnética I para sistema de depósito de carvão ativo T2ar - Conector de encaixe, duplo, na válvula magnética I para sistema de depósito de carvão ativo T2bd - Conector de encaixe, duplo, no injetor do cilindro 1 T2be - Conector de encaixe, duplo, no injetor do cilindro 2 T2bf - Conector de encaixe, duplo, no injetor do cilindro 3 T2bg - Conector de encaixe, duplo, no injetor do cilindro 4 T9e - Conector de encaixe, nônuplo, no relé da bomba de combustível T10e - Conector de encaixe, décuplo, (vermelho) atrás do porta-objetos - lado do acompanhante T121a- Conector de encaixe, 121 pólos, no aparelho de comando 4LV (Sistema de Injeção) - Ligação (87,injetores) no chicote/jogo de cabos da injeção - Ligação (87) -1- no chicote/jogo de cabos da injeção 267 268 269 270 271 272 273 274 275 276 277 278 279 280 Gol/Parati/Saveiro Num. 118/21 Relé da bomba de combustível, Aparelho de comando 4LV (Sistema de Injeção), Injetores dos cilindros 1, 2, 3 e 4, Válvula magnética I para sistema de depósito de carvão ativo Esquema elétrico Edição 10/2001 J537 T121a/64 T2ar/1 T2ar/2 N80 T2bd/2 T2be/2 T2bf/2 T2bg/2 T2be/1 T2bg/1 N30 N31 N32 N33 T2bd/1 T2bf/1 J17 T9e/2 30 T9e/4 86 T9e/8 87 T9e/6 85 T121a/97 T121a/ 96 T121a/ 88 T121a/89 T121a/65 157 70 281 E44 E45 0,35 br/ws 0,35 br/ge 0,35 gn/ro 0,35 gn/ge 0,35 gn/sw 0,35 gn/bl 2,5 ro/bl 1,0 sw/ro 1,0 sw/ro 1,0 sw/ro 1,0 sw/ro 1,5 sw/ro 2,5 sw/ro 1,0 sw/ro 2,5 sw/ro 1,5 sw/ro 214 1,0 sw T121a/48 62 0,35 gr/gn 0,35 gr/gn T10e/10 E44 E45
  • 22.
    ws = branco sw= preto ro = vermelho br = marrom gn = verde bl = azul gr = cinza li = lilás ge = amarelo 97-71184 281 282 283 289 290 291 292 293 294 284 285 286 287 288 Num. 63/22 Gol/Parati/Saveiro Esquema elétrico Edição 10/2001 G28 - Transmissor das rotações do motor G39 - Sonda lambda G79 - Transmissor para posição do pedal do acelerador G185 - Transmissor -2- para posição do pedal do acelerador J537 - Aparelho de comando 4LV (Sistema de Injeção) T3s - Conector de encaixe, triplo, próximo ao motor de partida T4i - Conector de encaixe, quádruplo, atrás no compartimento do motor T6h - Conector de encaixe, sêxtuplo, no transmissor para posição do pedal do acelerador T8l - Conector de encaixe, óctuplo, atrás do revestimento da coluna de direção T10e - Conector de encaixe, décuplo, (vermelho) atrás do porta-objetos - lado do acompanhante T121a- Conector de encaixe, 121 pólos, no aparelho de comando 4LV (Sistema de Injeção) Transmissor das rotações do motor, Sonda lambda, Transmissor para posição do pedal do acelerador, Transmissor -2- para posição do pedal do acelerador, Aparelho de comando 4LV (Sistema de Injeção) λ G39 T4i/3 T4i/2 T4i/4 278 0,35 gr/ws 1,5 sw/ro T121a/ 68 T121a/ 89 T121a/83 0,35 gr/ro 0,35 br T4i/1 T121a/ 82 0,35 sw/gn 0,35 sw/bl 244 0,35 br/bl T3s/ 3 T3s/ 2 T121a/ 34 T121a/ 72 T121a/ 33 T121a/ 73 T121a/ 35 T121a/ 36 G79 T6h/6 T6h/1 T6h/5 T6h/2 T6h/4 T6h/3 0,35 sw/ws 0,35 sw/bl 0,35 ro 0,35 gr 0,35 gn/ws 0,35 ge/sw T10e/ 6 T10e/ 1 T10e/ 5 T10e/ 2 T10e/ 4 0,5 sw/ws 0,5 sw/bl 0,5 ro 0,5 gr 0,5 gn/ws 0,5 ge/sw T8l/ 6 T8l/ 1 T8l/ 5 T8l/ 2 T8l/ 4 0,5 sw/ws 0,5 sw/bl 0,5 ro 0,5 gr 0,5 gn/ws 0,5 ge/sw T3s/ 1 T8l/ 3 T121a/ 87 T10e/ 3 G28 G185 J537