UNIVERSIDADE FEDERAL DO CEARÁ
CENTRO DE TECNOLOGIA
DEPARTAMENTO DE ENGENHARIA ELÉTRICA
PROJETO DA SUBESTAÇÃO 69/13,8 KV DA UFC-CAMPUS
DO PICI
João Victor da Costa Vale
Fortaleza
Maio de 2011
ii
JOÃO VICTOR DA COSTA VALE
PROJETO DA SUBESTAÇÃO 69/13,8 KV DA UFC-CAMPUS
DO PICI
Monografia submetida à Universidade Federal
do Ceará como parte dos requisitos para
obtenção do Diploma de Graduação
Engenharia Elétrica.
Orientador: Prof. Raimundo Furtado Sampaio
Co-orientador: Eng. Roberto Freire de Castro
Alves
Fortaleza
Maio de 2011
iii
JOÃO VICTOR DA COSTA VALE
PROJETO DA SUBESTAÇÃO 69/13,8 KV DA UFC-CAMPUS
DO PICI
Esta dissertação foi julgada adequada para obtenção do Diploma de Graduação em
Engenharia Elétrica e aprovada em sua forma final pelo programa de Graduação em
Engenharia Elétrica na Universidade Federal do Ceará.
______________________________________________________
João Victor da Costa Vale
Banca Examinadora:
______________________________________________________
Prof. Raimundo Furtado Sampaio.
Presidente
______________________________________________________
Eng. Roberto Freire de Castro Alves
______________________________________________________
Prof. Tomaz Nunes Cavalcante Neto
Fortaleza, Maio de 2011
iv
“Tudo posso n’Aquele que me fortalece”
(Filipenses 4.13)
v
A Deus,
Aos meus pais, João Bosco e Maria Lúcia.
vi
AGRADECIMENTOS
Primeiramente a Deus, pelo dom da vida e por iluminar o meu caminho nos momentos
de maior escuridão.
Aos meus pais, João Bosco e Maria Lúcia, por estarem sempre ao meu lado nos
momentos bons e, principalmente, nos ruins. Suas orientações e o seu apoio não serão
esquecidos jamais.
À minha namorada, Débora, pela compreensão e pela força que sempre me deu para
seguir adiante com este projeto, quando tudo parecia impossível e eu estava perdido nas
minhas dúvidas.
Ao professor/engenheiro Raimundo Furtado, pela paciência, disponibilidade e ajuda
na concatenação das idéias para a escrita desta monografia. Exemplo de professor.
Ao engenheiro Roberto Freire, pela simplicidade com que consegue resolver
problemas e por abrir os meus olhos para a profissão de engenheiro num momento em que a
dúvida parecia vencer.
À engenheira Silvia Helena, por tentar passar um pouco do muito que sabe sobre
projeto eletromecânico de subestações. A sua ajuda foi uma das mais, senão A MAIS,
fundamentais para a realização deste trabalho.
Ao engenheiro Gilson Alves Teixeira, por ter sempre acreditado no meu trabalho.
A todas as pessoas que fazem parte da Área de Projetos de Linhas e Subestações da
COELCE que eu não mencionei o meu agradecimento individualmente, mas que não são
menos importantes: Célia Amaral, Soleide, Adail Carnaúba, Hélio Carnaúba, Anselmo, Átila
Monteiro, Samy Auad, Marcos Henrique, Delano Coimbra e, propositalmente, por fim, Luiz
(Louis) Chaves.
vii
Vale, João Victor da C. e “Estudo e Projeto da Subestação 69/13,8 kV da UFC – Campus do
Pici”, Universidade Federal do Ceará – UFC, 2011, 86p.
Esta monografia apresenta o estudo dos equipamentos e o projeto eletromecânico da
subestação abaixadora aérea 69/13,8 kV, 5/6,25 MVA, do Campus do Pici da Universidade
Federal do Ceará, seguindo as normas da concessionária local, COELCE. São apresentados os
seus principais equipamentos constituintes, bem como suas características a serem
especificadas no momento da compra. O processo de implantação de uma subestação é
subdividido em subprocessos que vão desde o planejamento até a energização da subestação.
Todos esses subprocessos são descritos. Apresenta-se uma proposta de arranjo eletromecânico
para a subestação do Campus do Pici com uma entrada de linha de 69 kV, barramentos
simples em AT e MT, potência inicial de 5/6,25 MVA, com possibilidade de expansão e três
alimentadores MT. Também é feito um memorial descritivo do projeto eletromecânico, com a
especificação técnica dos equipamentos a serem adquiridos e um orçamento do custo total da
subestação.
Palavras-Chave: subestação, equipamentos, sistemas de potência.
viii
Vale, João Victor da C. e “Project of the UFC – Campus do Pici 6/13,8 kV substation”,
Universidade Federal do Ceará – UFC, 2011, 86p.
This monography presents the study or equipment and the electromechanical project of an
step-down outdoor 69/13,8 kV, 5/6,25 substation following the local electrical company
standards. Its principal equipment are presented and the characteristics to be specified in the
buying moment. The establishment process of an substation is divided into sub processes
witch goes from planning to energization. All these sub processes are described. It is done a
proposal of an electromechanical scheme to de Campus do Pici substation with an in line of
69 kV, simple busbar arrangement in HV and MV, initial power of 5/6,25 MVA with
expansion possibility and three outlines of 13,8 kV. Also is done a technical report with the
technical specifications of the equipments to be acquired and a budget to estimate the total
cost of the substation.
.
Keywords: substation, equipments, power systems.
ix
SUMÁRIO
LISTA DE FIGURAS ...............................................................................................................xi
LISTA DE TABELAS .............................................................................................................xii
CAPÍTULO 1
INTRODUÇÃO..........................................................................................................................1
1.1 JUSTIFICATIVA.......................................................................................................3
1.2 OBJETIVOS...............................................................................................................3
1.3 ESTRUTURA DO TRABALHO...............................................................................3
CAPÍTULO 2
SUBESTAÇÕES DE ENERGIA ELÉTRICA...........................................................................5
2.1 CLASSIFICAÇÃO DAS SEs.....................................................................................5
2.1.1 CLASSIFICAÇÃO QUANTO AO NÍVEL DE TENSÃO................................5
2.1.2 CLASSIFICAÇÃO QUANTO A CONFIGURAÇÃO ......................................5
2.1.3 CLASSIFICAÇÃO QUANTO A FUNÇÃO......................................................7
2.2 EQUIPAMENTOS DE UMA SE...............................................................................7
2.3 BARRAMENTOS......................................................................................................9
2.4 DISJUNTORES........................................................................................................14
2.4.1 ESPECIFICAÇÃO DE DISJUNTORES .........................................................16
2.5 TRANSFORMADORES DE FORÇA.....................................................................17
2.5.1 ESPECIFICAÇÃO DE TRANSFORMADORES DE FORÇA.......................23
2.6 CHAVES SECCIONADORAS................................................................................24
2.6.1 ESPECIFICAÇÃO DE CHAVES SECCIONADORAS .................................25
2.7 PARA-RAIOS ..........................................................................................................25
2.7.1 ESPECIFICAÇÃO PARA-RAIOS ..................................................................26
CAPÍTULO 3
PROJETO DE SUBESTAÇÕES..............................................................................................28
3.1 IMPLANTAÇÃO DE UMA SUBESTAÇÃO .........................................................28
3.1.1 PLANEJAMENTO...........................................................................................28
3.1.2 PROJETO CIVIL .............................................................................................29
3.1.3 PROJETO ELETROMECÂNICO ...................................................................29
3.1.4 PROJETO ELÉTRICO.....................................................................................30
3.1.4.1 PROJETO DE AUTOMAÇÃO....................................................................30
3.1.5 PROCESSO DE COMPRA..............................................................................31
x
3.1.6 COMISSIONAMENTO...................................................................................31
3.1.7 ENERGIZAÇÃO..............................................................................................32
3.2 PROJETO ELETROMECÂNICO DA SE UFC CAMPUS DO PICI .....................32
3.2.1 PLANEJAMENTO DA SE CAMPUS DO PICI UFC.....................................32
3.2.2 ESCOLHA DO TERRENO..............................................................................32
3.2.3 MALHA DE TERRA.......................................................................................33
3.2.3.1 ESTUDO DA RESISTIVIDADE DO SOLO ..............................................34
3.2.3.1 CÁLCULO DA MALHA DE TERRA ........................................................34
3.2.3.2.1 CONDUTORES DA MALHA DE TERRA ................................................35
3.2.4 BLINDAGEM ..................................................................................................35
3.2.5 ESTRUTURAS ................................................................................................35
3.2.3.1 ENTRADA DE LINHA 72,5 kV .................................................................35
3.2.3.1 BARRAMENTO 72,5 kV ............................................................................36
3.2.3.1 CONEXÃO AT DO TRAFO 02T1..............................................................37
3.2.3.1 CONEXÃO BT DO TRAFO 02T1 ..............................................................37
3.2.3.1 BARRAMENTO DE 15 kV.........................................................................38
3.2.6 ILUMINAÇÃO DOS PÁTIOS E ACESSOS ..................................................39
3.2.7 ORÇAMENTO DA SE ....................................................................................39
CAPÍTULO 4
CONCLUSÃO E DESENVOLVIMENTOS FUTUROS ........................................................40
REFERÊNCIAS BIBLIOGRÁFICAS .....................................................................................50
APÊNDICE A – MEMORIAL DESCRITIVO DO PROJETO ELETROMECÂNICO DA
SE UFC CAMPUS DO PICI
APÊNDICE B – ORÇAMENTO DA SE UFC CAMPUS DO PICI
APÊNDICE C – PLANTAS DO PROJETO ELETROMECÂNICO DA SE 69/13,8 kV
UFC CAMPUS DO PICI
ANEXO A – DETALHES DE INSTALAÇÃO E MONTAGEM DE
EQUIPAMENTOS E MATERIAIS 72,5 – 15 kV
xi
LISTA DE FIGURAS
Figura 1.1: Divisão em módulos do PRODIST [5]...............................................................2
Figura 2.1: SE aérea ..............................................................................................................6
Figura 2.2: SE blindada [9] ...................................................................................................7
Figura 2.3: Canaleta aberta....................................................................................................8
Figura 2.4: Barramento simples [9].....................................................................................10
Figura 2.5: Barramento duplo [9]........................................................................................11
Figura 2.6: Barramento simples seccionado [9]..................................................................11
Figura 2.7: Barramento principal e de transferência [9]......................................................12
Figura 2.8: Barramento duplo com um disjuntor [9]...........................................................13
Figura 2.9: Barramento duplo com disjuntor duplo [9].......................................................14
Figura 2.10: Barramento com disjuntor e meio [9]...............................................................14
Figura 2.11: Barramento em anel [9] ....................................................................................15
Figura 2.12: Circuito magnético elementar de um transformador [7]...................................18
Figura 2.13: Circuito equivalente de um transformador real [7]...........................................19
Figura 2.14: Ligação das bobinas em triângulo [7]...............................................................20
Figura 2.15: Ligação das bobinas em estrela [7]...................................................................20
Figura 2.16: Ligação das bobinas em zigue-zague [7]..........................................................21
Figura 2.17: Componentes de montagem de um transformador [7]......................................22
Figura 2.18: Chave seccionadora de tripolar de comando silmultâneo [7]...........................24
Figura 2.19: Para-raios estação polimérico [9]......................................................................26
Figura 3.1: Terreno inicialmente proposto para a SE UFC CAMPUS DO PICI ................33
Figura 3.2: Terreno escolhido para a SE UFC CAMPUS DO PICI....................................33
xii
LISTA DE TABELAS
Tabela 1.1: Tensão de conexão conforme a característica da carga ......................................2
Tabela 3.1: Número de hastes de aterramento.....................................................................34
1
CAPÍTULO 1
INTRODUÇÃO
O crescimento econômico experimentado pelo Brasil nos últimos anos está
confirmando a hipótese de que a expansão econômica influencia no acréscimo da demanda de
energia elétrica. O aumento da renda das famílias e a oferta de crédito voltada ao consumidor
interno fizeram com que o Operador Nacional do Sistema (ONS) registrasse um crescimento
recorde de 8,3% na demanda por energia elétrica no ano de 2010 [1].
É importante, portanto, que o crescimento do Produto Interno Bruno (PIB) e da
população sejam monitorados de perto pelos órgãos governamentais responsáveis pelo
planejamento energético do país. A atenção deve ser dada a todos os níveis do sistema
elétrico: geração, transmissão e distribuição, pois de nada vale um grande potencial de
produção de energia elétrica se não for possível fazê-la chegar aos centros consumidores.
O Brasil é um bom exemplo de integração do sistema elétrico. Com aproximadamente
73,1% da produção de energia elétrica gerada por mecanismos hidráulicos e estando os locais
produtores distantes dos centros de cargas, existem grandes extensões de linhas de
transmissão e instalações responsáveis por processar e distribuir a energia elétrica [2].
As Subestações (SEs) fazem parte desse conjunto de instalações que desempenham
papel fundamental num sistema elétrico. Seja na geração, transmissão, distribuição e, até
mesmo, em consumidores, as SEs são responsáveis por garantir maior confiabilidade,
disponibilidade, segurança e economia no uso da energia elétrica.
O projeto de uma Subestação (SE) de um consumidor acessante, deve estar de acordo
com as normas, padrões e procedimentos do sistema de distribuição da acessada, além das
normas da Associação Brasileira de Normas Técnicas (ABNT) [5]. Nesse contexto, a Agência
Nacional de Energia Elétrica (ANEEL), autarquia vinculada ao Ministério de Minas e Energia
(MME), elaborou os Procedimentos de Distribuição (PRODIST), que visam disciplinar o
relacionamento entre as distribuidoras de energia elétrica e os demais agentes conectados aos
sistemas de distribuição [3]. O Prodist é composto de oito módulos, sendo seis módulos
técnicos e dois módulos integradores, conforme mostrado na Figura 1 [4].
2
Figura 1.1 – Divisão em módulos do PRODIST [5].
O Módulo 3 do PRODIST – ACESSO AO SISTEMA DE DISTRIBUIÇÃO é de
especial interesse dos acessantesi
do sistema de distribuição, pois nele estão definidos, entre
outros, os critérios técnicos e operacionais requeridos para conexão ao sistema de distribuição
e as exigências para elaboração de projetos de instalações de conexão. Os critérios
estabelecidos em [5] relacionam a potência instalada, o Montante de Uso do Sistema de
Distribuição (MUSD)ii
e a tensão de conexão, conforme descrito na Tabela 1.1:
Tabela 1.1 – Tensão de conexão conforme a característica da carga.
Nível de tensão Tensão nominal Características
Baixa tensão (BT) 	

 1	
  
 75	

Média tensão (MT) 1	  	
 69	

  75	
 e
  2500	

Alta tensão (AT) 69	 
 	
 230	
	   2500	

1.1 - JUSTIFICATIVA
De acordo com estudos previamente apresentados em [6], o sistema elétrico do
Campus do Pici da Universidade Federal do Ceará (UFC) tem uma potência instalada de
9.150 kW, um MUSD de 3.500 kW e é atualmente atendido na tensão primária em 13,8 kV
através da rede de Média Tensão (MT) da COELCE, justificando, portanto, a implantação de
3
uma subestação 69/13,8 kV no Campus do Pici. Os estudos realizados em [6] motivaram a
elaboração do projeto eletromecânico da SE Campus do Pici UFC, apresentada neste trabalho.
1.2 - OBJETIVOS
Esta monografia tem como objetivos apresentar a metodologia e o desenvolvimento do
projeto eletromecânico para a SE Campus do Pici, 69/13,8 kV, potência inicial 5/6,25 MVA
com previsão de expansão. Este projeto foi elaborado seguindo as normas e procedimentos da
concessionária local.
A metodologia para o trabalho inclui:
- Levantamento dos dados em campo;
- Reunião com os responsáveis pela rede elétrica do Campus do Pici para definição da
localização do terreno da SE;
- Análise das normas e critérios de projetos de SEs da Coelce e adequação ao projeto de
SEs de consumidores;
- Elaboração das plantas e do memorial descritivo que correspondem ao Projeto
Eletromecânico da SE Campus do Pici UFC.
1.3 - ESTRUTURA DO TRABALHO
Este trabalho é composto de quatro capítulos. No primeiro Capítulo, é dada uma
introdução do sistema elétrico como um todo e sobre o PRODIST, conjunto de normas
visando disciplinar o relacionamento entre os acessantes e os agentes distribuidores de energia
elétrica.
No segundo Capítulo, é feita uma breve explanação sobre os equipamentos que
compõem uma subestação de energia elétrica. O principal objetivo desse Capítulo, no entanto,
é mostrar as características técnicas que se deve levar em consideração na especificação
desses equipamentos para a sua compra.
O terceiro Capítulo é dedicado ao projeto de SEs. Nele, são descritos todos os
processos que fazem parte da implantação de uma SE nova. Em seguida, é descrito o projeto
eletromecânico da SE UFC – CAMPUS DO PICI.
4
O quarto Capítulo é dedicado à conclusão do trabalho. Nele são expostos o que foi
feito neste trabalho, o que não foi possível ser realizado e uma indicação para possíveis
trabalhos futuros.
i
Acessantes: consumidor, central geradora, distribuidora ou agente importador ou exportador de energia, com
instalações que se conectam ao sistema elétrico de distribuição, individualmente ou associados [5].
ii
MUSD: potência ativa média calculada em intervalos de 15 (quinze) minutos, injetada ou requerida pelo
sistema elétrico de distribuição pela geração ou carga, em kW [5].
5
CAPÍTULO 2
SUBESTAÇÕES DE ENERGIA ELÉTRICA
2.1 - CLASSIFICAÇÃO DAS SES
As SEs estão localizadas em diferentes pontos do sistema de potência e são bastante
diferentes em seus tamanhos, design, configuração e aparência. Porém, o esquema de uma SE
é influenciado por alguns fatores comuns a todas elas como níveis de tensão das entradas e
saídas de linhas, potência nominal a ser processada, área disponível e finalidade. Atualmente,
existem diversas maneiras para se classificar uma SE, alguns deles são:
• Classificação quanto ao nível de tensão;
• Classificação quanto à configuração;
• Classificação quanto à função.
2.1.1 - CLASSIFICAÇÃO QUANTO AO NÍVEL DE TENSÃO:
Uma SE é denominada de acordo com o seu maior nível de tensão. Isto é, uma SE de
abaixadora de 69 kV para 13,8 kV é dita uma SE classe de tensão de 72,5-15 kV ou SE de
69/13,8 kV. Na Tabela 2.1 é dada a classificação de SEs baseada em seus níveis de tensão.
Tabela 2.1 – Classificação de SEs quanto ao nível de tensão [8]
Descrição Faixa de tensão
Baixa tensão Abaixo de 1kV
Média tensão Entre 1kV e 33kV
Alta tensão Entre 33kV e 110kV
Extra alta tensão Entre 110kV e 400kV
Ultra alta tensão Acima de 400kV
2.1.2 - CLASSIFICAÇÃO QUANTO À CONFIGURAÇÃO:
Está relacionada quanto ao tipo de isolação de suas partes condutoras e proteção
contra intempéries. As SEs são ditas aéreas quando estão dispostas ao tempo e sujeitas às
variações climáticas. Quando uma SE apresenta a mesma configuração de uma SE aérea mas
está protegida de variações do clima, ela é dita abrigada. Existem ainda as SEs que
apresentam uma parte da sua estrutura ao tempo e a outra abrigada. Elas são chamadas de SEs
semi-abrigadas. Nessas SEs, os equipamentos estão instalados em estruturas de concreto e
6
podem ser vistos a olho nu, uma vez que as partes vivas da instalação estão abertas no
ambiente. As SEs construídas em local abrigado e cujos equipamentos estão totalmente
imersos em óleo ou gás isolante são conhecidas como SEs blindadas. Elas também são
conhecidas como SEs compactas por ocuparem até 90% menos espaço que uma SE
convencional [9]. Na Figura 2.1 é mostrada uma SE aérea e na Figura 2.2 é mostrada uma SE
blindada.
Figura 2.1 – SE aérea
7
Figura 2.2 – SE blindada [9]
2.1.3 - CLASSIFICAÇÃO QUANTO À FUNÇÃO:
Esta classificação baseia-se na finalidade a SE. As SEs de transmissão e de
distribuição são SEs de transformação que têm a finalidade de transportar a energia elétrica da
geração até as cargas. Para isso elas elevam e rebaixam o nível da tensão, respectivamente,
visando a diminuição das perdas e a viabilidade da comercialização da energia elétrica. Uma
SE de manobra é capaz de inserir ou retirar partes do sistema, sempre no mesmo nível de
tensão. Se a finalidade de uma SE for a regulação da tensão por meio de equipamentos de
compensação tais como reatores, capacitores, compensadores estáticos, etc, ela é dita
reguladora. Existem ainda as SEs destinadas à transmissão de energia em corrente contínua,
que retificam a tensão alternada. Elas são as SEs conversoras. É possível ainda que uma única
SE possa incorporar alguma ou todas essas funções [9].
2.2 - EQUIPAMENTOS DE UMA SE
Em todas as SEs existem vários equipamentos, tanto no pátio de manobras como na
casa de comandos. Cada equipamento tem seus requisitos de funcionalidades e a escolha deles
depende de especificações técnicas como tensão nominal, potência nominal, tipo de SE, etc.
8
Dentre os equipamentos instalados no pátio de manobras estão os barramentos,
disjuntores, isoladores, chaves seccionadoras, transformadores de força, TPs, TCs, para-raios,
etc. Dependendo do nível de tensão e potência da SE, esses equipamentos podem ser
instalados em estruturas de aço galvanizado ou concreto.
Os equipamentos que ficam dentro da sala de comando são geralmente os cubículos
blindados de média e baixa tensões, conhecidos como metal clad switchgear, painéis de
medição, sala de baterias, geradores reservas, etc. Como se pode esperar, a sala de comandos
geralmente possui vários compartimentos para abrigar, com segurança, os vários
equipamentos que possam vir a ser instalado nela, dependendo do tamanho e da configuração
da SE.
A medição, a proteção e o controle na SE é feita por meio de cabos de controle de
baixa tensão que são instalados em canaletas que ligam os equipamentos no pátio de
manobras aos painéis na casa de comando. Na Figura 2.3 é mostrada uma canaleta contendo
cabos de comando, proteção e controle da SED Trairí da Coelce.
Figura 2.3 – Canaleta aberta
Numa SE existem três tipos de circuitos. O primeiro é o circuito principal, por onde
flui, em alta tensão, a potência das entradas de linhas para as saídas de linhas. O segundo é o
9
circuito de medição e proteção que saem pelos cabos conectados aos secundários dos TCs e
TPs e alimentam, em baixa tensão, medidores e relés. O terceiro é o circuito auxiliar, que se
destina a alimentação de serviços auxiliares na SE e à alimentação de retificadores e baterias
que, por sua vez alimentam equipamentos de controle, proteção e comunicação em corrente
contínua.
2.3 - BARRAMENTOS
Barramentos são condutores reforçados situados das extremidades das SEs que
possuem impedância desprezível e que agem como nós no sistema de potência. Por eles uma
SE recebe e redistribui a potência recebida através de linhas de transmissão. A eles também
podem ser conectados equipamentos como transformadores de força e disjuntores, por
exemplo, dependendo de seu arranjo [9]. Existe uma grande variedade de configuração de
barramentos cujo projeto varia de acordo com aspectos técnicos e econômicos. A
configuração do barramento é uma característica muito importante de uma SE visto que ela
afeta diretamente todo o seu esquema, a locação dos seus equipamentos e a sua operação sob
condições normais e anormais e, principalmente, o seu custo [8].
Os principais tipos de barramentos encontrados nas SEs são:
• Barramento simples;
• Duplo barramento simples;
• Barramento simples seccionado;
• Barramento principal e de transferência;
• Barramento duplo com um disjuntor;
• Barramento duplo com disjuntor duplo;
• Barramento duplo com disjuntor e meio;
• Barramento em anel.
O barramento simples é utilizado em SEs de pequena potência e tem a vantagem de
ser o de mais fácil operação e de menor custo. Porém, qualquer falha ou manutenção nele
ocasiona o desligamento das cargas alimentadas por ele. Por isso, ele é conhecido por ter
baixa confiabilidade. A sua representação é mostrada na Figura 2.4.
Se um consumidor possuir cargas prioritárias e não prioritárias, a configuração mais
recomendada para ele é a de duplo barramento simples. Nela, as cargas prioritárias são
10
conectadas a uma barra com geração e, na falta da alimentação principal, o gerador entra e é
capaz de suprir as cargas prioritárias. Na Figura 2.5 é ilustrado esse barramento [9].
Na configuração de barramento simples seccionado, existe um disjuntor de
interligação de barra ou chave seccionadora para interligar o barramento. Ela proporciona
maior continuidade no fornecimento, pois permite que uma falha não desenergize a barra
completamente, mas somente a parte referente ao lado em que ela ocorreu. Para maior
confiabilidade geralmente existem alimentadores dos dois lados do barramento seccionado
pelo disjuntor. Isso aumenta a complexidade dos sistemas de automação e proteção da SSE.
Esse arranjo é encontrado em SEs de distribuição de pequeno porte. A sua ilustração é
mostrada na Figura 2.6.
Figura 2.4 – Barramento simples [9]
11
Figura 2.5 – Duplo barramento simples [9]
Figura 2.6 – Barramento simples seccionado [9]
Quando a barra principal é ligada a uma barra auxiliar por meio de um disjuntor de
transferência, tem-se a configuração de barramento principal e de transferência. O
disjuntor de transferência garante a proteção de um bay da SE quando o disjuntor associado a
esse bay é retirado de serviço para manutenção. Para isso, são instaladas chaves de by-pass no
12
bay do disjuntor a ser substituído, possibilitando, assim, a sua retirada de serviço sem a
necessidade de interrupção do fluxo de potência. Nesse arranjo, o disjuntor de transferência
pode substituir qualquer um dos disjuntores conectados ao barramento principal e é o único
conectado diretamente às duas barras. A transferência da proteção pode ser realizada com o
auxílio de relés biestáveis que possibilitam o direcionamento do trip para o disjuntor
relacionado ao bay (na posição normal, N), para o disjuntor de transferência (na posição
transferido, T) ou para ambos (posição em transferência, ET). O esquema de automação e
proteção nesse caso é ainda mais complexo e pode ser ainda mais quando se tem o barramento
principal seccionado, como no caso de SEs de distribuição de grande porte. É importante
notar que uma falha na barra principal ocasiona o desligamento das cargas do barramento.
Esse arranjo também é mais caro que os mencionados anteriormente, pois adiciona um
disjuntor sobressalente aos equipamentos da SE. Este arranjo está mostrado na Figura 2.7 [9].
Figura 2.7 – Barramento principal e de transferência [9]
Em SEs de grande porte e importância é muito utilizado o esquema de barramento
duplo com um disjuntor, que permite uma maior flexibilidade de manobras que o esquema
de barramento principal e de transferência. Neste arranjo, as linhas podem ser conectadas a
qualquer um dos dois barramentos e, por isso, uma manutenção em um barramento não
significa no desligamento da SE. Porém, o seu uso é restringido devido ao seu preço, pois
além do disjuntor sobressalente usa-se o dobro de chaves seccionadoras nessa configuração.
Na figura 2.8 é mostrada a sua configuração.
13
Figura 2.8 – Barramento duplo com um disjuntor [9]
Na configuração de barramento duplo com disjuntor duplo existem dois disjuntores
e quatro chaves seccionadoras, por circuito, entre as duas barras, conforme mostrado na
Figura 2.9. Apesar da alta flexibilidade operacional e da confiabilidade, esse esquema é
bastante caro e é geralmente utilizado em SEs de alta potência em extra alta tensão [9][8].
Existe ainda uma configuração que usa três disjuntores para cada dois circuitos, como
mostrado na Figura 2.10. Daí ela é chamada de barramento de disjuntor e meio. Este
esquema é o mais flexível em sua operação e a sua confiabilidade também é a mais alta. Em
operação normal, todos os disjuntores estão fechados e ambas as barras estão energizadas.
Para retirar um dos alimentadores, é necessário abrir dois disjuntores e qualquer uma das
barras pode ser retirada de serviço sem a perda de qualquer alimentador. Este esquema é
muito utilizado em SEs de transmissão. Se comparado com o barramento duplo com um
disjuntor ele possui meio disjuntor a mais e, portanto é mais caro. Porém, se comparado com
barramento duplo com disjuntor duplo, ele possui meio disjuntor a menos e, portanto, é mais
barato [8].
No barramento em anel, a disposição dos equipamentos de manobra forma um
circuito fechado, como mostrado na Figura 2.11. Em operação normal todos os disjuntores
estão fechados e durante uma falta dois disjuntores associados à barra são abertos. Durante
uma manutenção em um disjuntor, o anel é aberto mas todos os circuitos alimentadores
continuam em serviço. O barramento em anel é viável pois requere somente um disjuntor por
circuito e a sua confiabilidade, flexibilidade e simplicidade de operação são altas [8].
14
Figura 2.9 – Barramento duplo com disjuntor duplo [9]
Figura 2.10 – Barramento com disjuntor e meio [9]
15
Figura 2.11 – Barramento em anel [9]
2.4 - DISJUNTORES
São chaves automáticas capazes de interromper, ou estabelecer, correntes de operação
normal ou de falta em um circuito à jusante. Contudo, sua principal função é a interrupção de
correntes de curto-circuito no menor tempo possível. Para isso, eles devem ser associados a
relés de proteção, os quais, alimentados por sensores que lêem as correntes nas fases do
circuito, enviam-lhe sinais ao seu mecanismo de acionamento e ele abre seus contatos.
Quando se separa os contatos de um disjuntor por meio de seu sistema de
acionamento, há a formação do arco elétrico, que se dá pela ruptura da rigidez dielétrica do
meio que preenche o espaço entre os contatos até então fechados. Ele forma um canal
condutor num meio fortemente ionizado e eleva significativamente a temperatura em seu
entorno. Esse canal condutor possibilita a continuidade do circuito até que a corrente atinja
seu valor nulo no ciclo senoidal. Mas, se o meio continuar ionizado no ciclo seguinte, existe a
possibilidade de formação de um novo arco, o que pode ser desastroso para o sistema.
Portanto, juntamente com a abertura do contato faz-se necessária a substituição do meio no
qual ele está imerso.
Outro aspecto importante a se levar em consideração é que a interrupção abrupta da
corrente em um circuito pode levar ao aparecimento de sobretensões no circuito como forma
de liberação da energia armazenada no instante da interrupção.
Os disjuntores são classificados com base no meio usado para extinção do arco. São
eles:
-Ar comprimido;
16
-Óleo;
-Gás SF6;
-Vácuo.
O sistema de acionamento do disjuntor é o mecanismo no qual é armazenada a energia
para requerida para a operação mecânica do disjuntor e comandada a sua operação. Quando é
possível realizar operações por fase, diz-se que o acionamento do disjuntor é monopolar. Por
outro lado quando somente é possível a abertura e o fechamento das três fases conjuntamente,
o acionamento é conhecido como tripolar. Existem vários tipos de acionamento e o principio
fundamental de todos eles é um circuito de comando dando o sinal para a liberação da energia
armazenada com o intuito de mover o contato móvel do disjuntor. Os principais sistemas de
acionamento dos disjuntores são:
-por solenóide;
-por mola;
-por ar comprimido;
-hidráulico.
2.4.1 - ESPECIFICAÇÃO DE DISJUNTORES
Na aquisição de disjuntores, é necessário que se especifique determinadas grandezas e
características, conforme apresentadas a seguir:
Tensão nominal: é o valor eficaz da tensão para a qual o disjuntor foi fabricado e
todos os outros valores nominais do disjuntor são referidos a ela.
Corrente nominal: é a correte que o disjuntor pode conduzir indefinidamente sem
que ocorra a elevação de temperatura de suas partes além do estabelecido nas normas.
Corrente de interrupção simétrica: é o valor eficaz da componente alternada da
corrente de curto-circuito.
Corrente de interrupção assimétrica: é o valor eficaz da corrente de curto-circuito
formado pela superposição da componente contínua da corrente de curto-circuito com a
componente simétrica da corrente de curto-circuito. Ela é a verdadeira corrente de curto-
circuito [Geraldo].
Potência de interrupção: em disjuntores de grande porte, a capacidade disruptiva da
câmara de extinção do arco é dada em MVA e definida como a potência de interrupção. Ela é
dada em função da tensão eficaz de linha no local do defeito e da corrente de curto-circuito.
17
Para o sistema de distribuição, a corrente de curto-circuito simétrica é a corrente de curto-
circuito usada para o cálculo da potência de interrupção devido à sua localização distante dos
geradores.
Frequência nominal: é a frequência da tensão de geração do sistema elétrico e para a
qual o disjuntor foi projetado.
Tempo de interrupção: é o tempo decorrido desde o comando de abertura do
disjuntor até a completa extinção do arco elétrico.
Tensão suportável de impulso: é o valor de impulso de tensão, seja devido a
descargas atmosféricas ou a manobras na rede, que um disjuntor deve suportar, conforme as
condições previstas em ensaio.
Tipo de construção: a forma construtiva de um disjuntor pode ser aberta ou blindada.
Tipo de comando: refere-se ao comando do sistema de acionamento do disjuntor, que
pode ser manual ou motorizado.
2.5 - TRANSFORMADORES DE FORÇA
No sistema elétrico, de maneira geral, a tensão na qual o usuário final conecta os seus
equipamentos não é a mesma que é gerada numa usina de geração. Os transformadores de
força são necessários para a transferência de potência de um nível de tensão para outro. Na
Figura 2.6 está representado o circuito magnético mais elementar de um transformador. Nela,
vê-se um transformador constituído por dois enrolamentos: primário e secundário,
magneticamente acoplados. Nesse transformador ideal, tem-se que a relação entre a tensão no
primário (V1) e a tensão no secundário (V2) tem o mesmo valor da relação entre o número de
espiras do primário (N1) e o número de espiras do secundário (N2) e o inverso do valor da
relação entre a corrente no primário (I1) e a corrente no secundário (I2), conforme a Equação
2.1.
1 1 2
2 2 1
V N I
V N I
= = . (2.1)
Os transformadores, quando utilizados para elevar a tensão de entrada em seu
primário, são chamados de elevadores e têm grande aplicação em subestações próximas às
usinas de geração. Por outro lado, os transformadores mais comumente usados são os
abaixadores, que rebaixam o nível da tensão conectada ao seu primário.
18
Em um transformador real existem perdas e elas são representadas no circuito elétrico
equivalente de um transformador da Figura 2.13. Nela, R1 representa a resistência do
enrolamento primário e 
representa a reatância de dispersão do primário, responsável pelo
aparecimento de uma tensão induzida que se soma à produzida pelo fluxo mútuo e varia
linearmente com a corrente Î1 de primário. Além de magnetizar o núcleo, a corrente de
primário deve fornecer corrente para a carga conectada ao secundário do transformador.
Portanto, é conveniente decompor a corrente de primário em duas componentes: de excitação
e de carga. A componente de excitação, Î, é não senoidal e produz o fluxo mútuo resultante e
a componente de carga, Î

, é a componente da corrente de que contrabalança a força
magnetomotriz da corrente de secundário, Î

. Também, matematicamente, a componente de
carga da corrente de primário é a corrente de secundário, Î2, referida ao primário como no
transformador ideal. A corrente de excitação, Î, pode, ainda, ser decomposta em uma
componente de perdas no núcleo, Îc, que flui pela resistência de magnetização e uma
componente de magnetização, Îm. que flui pela reatância de magnetização. Elas formam o
ramo de excitação, mostrado na Figura 2.13. Ainda nessa figura é possível notar a presença da
resistência de secundário referida ao primário, 

, e da reatância de dispersão do secundário
referida ao primário, 

[Fitzgerald].
Figura 2.12 – Circuito magnético elementar de um transformador [7]
19
Figura 2.13 – Circuito equivalente de um transformador real [7]
Os transformadores de força mais comumente encontrados são os monofásicos e os
trifásicos. Os transformadores monofásicos são individualmente mais baratos e podem ser
usados em conjunto para formar um banco trifásico de transformadores, dando maior
confiabilidade ao sistema por ele alimentado. Os transformadores trifásicos são os mais
utilizados no sistema de potência. Em ambos os casos, o acesso aos terminais das bobinas é
feito por meio das buchas de primário e secundário segundo as características elétricas do
transformador.
Um transformador trifásico pode ter os seus enrolamentos ligados de três maneiras
conforme seja mais adequado para a sua aplicação: triângulo (ou delta), Figura 2.14, estrela,
Figura 2.15 e zigue-zague, Figura 2.16. Na ligação triângulo, a tensão de linha é medida entre
dois terminais do transformador e a corrente que entra em um terminal é a corrente de linha.
A corrente de fase circula nas bobinas. Na ligação estrela, a tensão medida entre dois
terminais do transformador é a tensão de linha e a corrente que entra em um terminal é a
corrente de linha. A tensão medida entre o ponto comum e um terminal é chamada tensão de
fase. Na ligação zigue-zague tem-se a atenuação dos harmônicos de 3a
ordem e a
possibilidade de se obter três tensões de utilização. Porém, transformadores com esse tipo de
ligação têm um custo mais elevado que os transformadores com as ligações anteriormente
mencionadas.
20
Figura 2.14 – Ligação das bobinas em triângulo [7]
Figura 2.15 – Ligação das bobinas em estrela [7]
21
Figura 2.15 – Ligação das bobinas em zigue-zague [7]
Os transformadores podem ser classificados quanto ao meio isolante de seus
enrolamentos. Normalmente, os enrolamentos dos transformadores vêm imersos em líquido
isolante como o óleo mineral, por exemplo. A parte do transformador que contém o líquido
isolante é chamada de tanque. Porém, em algumas aplicações, as normas proíbem a utilização
desse tipo de transformador e a alternativa é a utilização de um transformador a seco. Esses
transformadores possuem uma estrutura semelhante à do transformador a líquido isolante,
porém, com um tratamento diferente dos seus enrolamentos. Outra diferença é a necessidade
de se deixar a canais de ventilação entre o núcleo e o enrolamento secundário e, também,
entre o enrolamento secundário e o primário.
Duas grandezas que são de extrema importância e de constante monitoramento na
operação de um transformador são a temperatura e a pressão. As temperaturas do óleo e do
enrolamento são medidas por sensores. Uma mudança rápida de pressão independente de ele
estar atuando na pressão de regime normal ocasiona a atuação do relé de súbita pressão,
indicando que há um defeito interno no transformador. Já a válvula de alívio de pressão serve
para permitir a descarga do óleo quando a pressão interna no tanque do transformador atingir
um valor acima do especificado. Ela deixa o óleo expandir do tanque para tanque de expansão
de óleo e tem uma ação extremamente rápida. Quando há a queima de material isolante dentro
do tanque de óleo do transformador, ocorre a liberação de gases que devem ser detectados
pelo relé Buchholz e, assim o disjuntor de proteção deverá atuar. Na Figura 2.16 são
indicados os diversos componentes de montagem de um transformador de distribuição.
22
Figura 2.16 – Componente de montagem de um transformador [7]
O calor gerado pelas perdas ôhmicas nos enrolamentos, pela histerese e por correntes
parasitas no núcleo do transformador é levado ao meio externo pelo sistema de resfriamento.
23
Nele, o calor é transferido ao meio de resfriamento interno, óleo mineral, por exemplo, e dele
para radiadores e ao meio ambiente. Os processos de transferência de calor se dão por
condução, radiação e convecção, sendo o mais importante deles a convecção. No resfriamento
dos transformadores a convecção pode ser natural ou forcada. Na convecção forçada são
utilizados ventiladores que aceleram o ar quente substituindo-as por ar frio que é usado para o
resfriamento dos radiadores do transformador. Este processo acarreta um ganho extra de
potência nominal do transformador fazendo com que ele possa ser operado continuamente a
uma potência maior do que ele poderia sem a ventilação forçada.
2.5.1 - ESPECIFICAÇÃO DE TRANSFORMADORES
Na aquisição de transformadores, são necessários que se especifiquem determinadas
grandezas e características, conforme apresentadas a seguir:
Tensão primária: é a tensão eficaz entre fases do primário do transformador.
Tensão secundária: são as tensões eficazes entre fases e entre fases e neutro do
transformador.
Potência nominal: é a potência aparente que serve de base para o projeto do
transformador. Ela determina a corrente nominal que deve circular no transformador sob a
tensão nominal.
Deslocamento angular: representa a diferença entre os fasores de tensão dos
terminais do transformador e o ponto neutro (real ou ideal), quando um sistema de sequência
positiva é aplicado na ordem numérica dos terminais do transformador, admitindo-se que os
fasores girem no sentido anti-horário.
Número de fases: representa o número de fases da tensão de alimentação do
transformador.
Tensão suportável de impulso: é o valor de impulso de tensão, seja devido a
descargas atmosféricas ou a manobras na rede, que um transformador deve suportar,
conforme as condições previstas em ensaio.
Impedância percentual: é a impedância do transformador em percentagem da tensão
de curto-circuito nos terminais do primário.
Acessórios desejados: ventilação forçada, comutador de tape em carga, etc.
24
2.6 - CHAVES SECCIONADORAS
As chaves seccionadoras são dispositivos de manobra que, na posição aberta,
garantem a distância de isolamento requerida pelo nível de tensão do circuito. Elas são
instaladas de maneira a possibilitar a isolação de um circuito da SE para manutenção. As
chaves não devem ser operadas em carga, mas sempre em conjunto com um disjuntor, isto é,
só se deve abrir uma chave depois de o seu disjuntor correspondente ser aberto e ela sempre
deve ser fechada antes do fechamento desse disjuntor. Na Figura 2.17 é ilustrada uma chave
seccionadora tripolar de comando simultâneo.
Figura 2.17 – Chave seccionadora tripolar de comando simultâneo [7]
O circuito principal de uma chave seccionadora é constituído das partes condutoras
que se inserem no circuito em que a chave opera. A parte da chave seccionadora associada
exclusivamente a um caminho condutor, excluídos o suporte isolante, a base e todos os
elementos de operação simultânea, é conhecida como pólo. A chave seccionadora da Figura
2.17 é tripolar, pois possui três dessas partes. Os terminais da chave seccionadora fazem a
ligação da chave com o circuito no qual ela está inserida e os seus contatos são as peças
metálicas responsáveis por assegurar a continuidade do circuito quando se tocam. Os contatos
da chave são abertos ou fechados por meio do dispositivo de operação, que pode ser manual
ou motorizado. Após a realização de uma manobra, o dispositivo de bloqueio indica ao
operador a posição dos contatos da chave e a trava para evitar uma operação acidental [7].
As chaves de aterramento são conectadas entre as linhas de transmissão e a terra e
quando a linha é retirada de serviço para manutenção, essas chaves, que são normalmente
abertas, são fechadas para que seja descarregada a tensão armazenada na capacitância
formada pela linha de transmissão e a terra [8].
As chaves seccionadoras podem apresentar as seguintes configurações [7]:
25
• Seccionadores de abertura lateral singela;
• Seccionadores de abertura central;
• Seccionadores de dupla abertura central;
• Seccionadores de abertura vertical;
• Seccionadores pantográficos.
2.6.1 - ESPECIFICAÇÃO DE CHAVES SECCIONADORAS
A especificação de chaves seccionadoras requer a indicação dos seguintes itens [7]:
• Tensão nominal;
• Corrente nominal;
• Frequência nominal;
• Corrente nominal suportável de curta duração;
• Duração da corrente suportável de curto-circuito;
• Valor de crista nominal da corrente suportável;
• Tensão de operação dos circuitos auxiliares;
• Tensão nominal dos dispositivos de comando.
2.7 - PÁRA-RAIOS
Os para-raios são equipamentos responsáveis por reduzir o nível de sobretensão, seja
ela por descargas atmosféricas ou por manobras, a valores compatíveis com a classe de
isolação dos equipamentos que ele protege. Eles podem ser utilizados na proteção de vários
equipamentos de uma SE ou simplesmente de um transformador de distribuição em um poste.
Em SEs, eles normalmente estão instalados nas entradas e saídas de linhas, podendo, também,
conforme estudo para avaliação da necessidade, ser instalados nos barramentos mais
próximos dos transformadores.
Segundo a NBR-5424, os para-raios são divididos em classes. A classe estação
subdivide-se em serviço leve e pesado. Para serviço leve existem para-raios de 20kA, 15kA e
10kA. Para serviço pesado existem para-raios de 10kA. A classe distribuição possui para-
raios de 5kA séries A e B. Por fim, a classe secundária possui para-raios de 1,5kV.
26
Os para-raios de 10kA são aplicados em SEs acima de 69kV e asseguram melhores
níveis de proteção. Em seguida, vêm os para-raios de 5kA série A que são aplicados em
sistemas de transmissão abaixo de 69kV e depois os para-raios de 5kA série B que são usados
na proteção de transformadores de distribuição. Os para-raios da classe secundária têm pouca
aplicação em instalações industriais e são mais comumente usados em entradas de
consumidores de baixa tensão. Na Figura 2.18 é mostrado um para-raios estação polimérico.
Figura 2.18 – Para-raios estação polimérico [9]
2.7.1 - ESPECIFICAÇÃO DE PARA-RAIOS
Na compra de um para-raios devem ser especificados os seguintes dados [7]:
• Tensão nominal;
• Tensão disruptiva máxima de impulso atmosférico;
• Tensão residual máxima sob corrente de descarga nominal;
• Tensão disruptiva à frequência industrial;
• Tensão disruptiva máxima por surto de manobra;
• Corrente de descarga nominal;
• Classe;
• Tipo de resistor não-linear.
27
2.8 - CONCLUSÃO
Neste Capítulo as SEs foram classificadas de diferentes maneiras visando a melhor
compreensão de suas aplicações e o entendimento das peculiaridades de cada tipo de SE.
Foram apresentadas diferentes configurações de barramentos e descritas suas principais
funcionalidades. Essa abordagem é importante, pois a definição do tipo de barramento tem
impacto tanto na operação da SE quanto no seu custo de implantação. Por fim, foram
apresentados os principais equipamentos de uma SE e suas especificações de compra.
28
CAPÍTULO 3
PROJETO DE SUBESTAÇÕES
3.1 - INTRODUÇÃO
O processo de implantação de uma SE é constituído dos seguintes subprocessos:
- Planejamento;
- Projeto Civil;
- Projeto Eletromecânico;
- Projeto Elétrico;
- Processo de Compra;
- Comissionamento;
- Energização.
Esses subprocessos não são necessariamente sequenciais, uma vez que alguns deles
necessitam de entradas que são fornecidas por outros processos.
3.1.1 - PLANEJAMENTO
A concepção de uma SE começa com o seu planejamento. Para isso, deve ser feito um
estudo extremamente criterioso sobre a carga que ela deve alimentar, bem como a projeção do
seu crescimento. Além do conhecimento profundo da carga, também é importante conhecer o
sistema, pois uma SE pode, ao mesmo tempo, suprir uma carga e funcionar como uma carga
para SEs a montante.
O estudo do fluxo de potência é o mais corriqueiro método para solução da rede
elétrica em regime permanente de operação e geração. Nele, através de dados de entrada,
como geração e consumo de potência ativa e reativa em determinadas barras do sistema, são
desenvolvidos métodos matemáticos, visando à convergência no cálculo do módulo e do
29
ângulo das tensões em algumas barras do sistema. Assim, pode-se determinar o fluxo de
potência ativa e reativa nos elementos da rede. Atualmente, o estudo do fluxo de potência é
uma das ferramentas iniciais para estudos de curto-circuito e de estabilidade. Também existe
o estudo do fluxo ótimo de potência, que fornece a melhor configuração da rede visando
minimizar os custos de operação e reduzir as perdas [16].
Além do estudo para análise do sistema de potência, uma análise sócio-econômica
também deve ser realizada para um bom planejamento de qualquer sistema elétrico, seja ele
de uma concessionária de distribuição de energia elétrica, de uma indústria e, até mesmo, de
uma residência. Fatores como crescimento da população de uma dada região, incentivos
governamentais para instalação de novas indústrias ou aumento da produção pelo recebimento
de novas encomendas de produtos, podem impactar no consumo de energia desses
subsistemas e alterar a forma como eles são supridos. Neste sentido, no planejamento da SE
considera-se o crescimento vegetativo da carga.
3.1.2 - PROJETO CIVIL
O Projeto Civil de uma SE parte de estudos da situação do terreno reservado para a
construção da SE e determina, em suas plantas e memoriais, a necessidade de realização de
obras preliminares como raspagem e terraplanagem, por exemplo.
Uma vez especificada a condição do terreno para o início das obras de construção da
SE, o Projeto Civil segue intimamente ligado ao Projeto Eletromecânico da SE, pois a
disposição de equipamentos, postes, acessos, canaletas e a posição de entradas e saídas de
linhas podem influenciar diretamente nos materiais e na forma como serão projetadas as
drenagens e pavimentações, edificações, bases e fundações para postes e equipamentos e
instalações hidro-sanitárias.
3.1.3 - PROJETO ELETROMECÂNICO
O ponto de partida do Projeto Eletromecânico é o Diagrama Unifilar da SE. Nele, é
definido o esquema da SE e apontados os seus equipamentos. Então se dá a definição das
30
plantas baixas com localização das estruturas, bases e acessos para instalação dos
equipamentos, proporcionando a elaboração da planta denominada arranjo físico. Nele
também são dimensionadas e posicionadas as canaletas e eletrodutos de interligação dos
equipamentos à casa de comando.
A medição da resistividade do solo, o cálculo e elaboração da planta malha de terra, o
aterramento de equipamentos, cercas e portões, o dimensionamento dos condutores do
circuito principal da SE e a blindagem de proteção contra descargas atmosféricas também
fazem parte do escopo do projeto eletromecânico.
3.1.4 - PROJETO ELÉTRICO
O Projeto Elétrico parte do diagrama unifilar de proteção e medição e detalha a
filosofia das proteções e controle dos equipamentos da SE. A interligação entre os
transformadores de instrumentos e os relés de proteção é explicitada nesse projeto, bem como
o dimensionamento dos cabos necessários para essas ligações. Esses dados geralmente
constam também nos diagramas trifilares. Os diagramas funcionais do Projeto Elétrico
mostram as fiações destinadas à supervisão dos equipamentos, seus comandos e eventuais
trips. Também constam no Projeto Elétrico os detalhes de instalação dos equipamentos nos
quadros de comando localizados na casa de comando.
3.1.4.1 - PROJETO DE AUTOMAÇÃO
Conceitualmente, a automação do projeto elétrico é objeto de um projeto a parte. Na
prática, contudo, não se faz distinção entre um e outro, tamanha foi a incorporação da
automação pelos projetistas responsáveis pelo projeto elétrico. O objetivo do Projeto de
Automação é a economia nas funcionalidades do Projeto Elétrico sem a perda de sua
confiabilidade. Ele utiliza equipamentos microprocessados para implementar as funções de
proteção e controle em uma SE. Com o aumento da velocidade de comunicação entre
equipamentos, a queda no seu custo de aquisição e a consolidação de um protocolo de
31
comunicação padrão entre eles, há uma tendência de incorporação do Projeto de Automação
pelo Projeto Elétrico em projetos de SEs de alta tensão.
O sistema de automação de SEs tem sua arquitetura formada em quatro níveis, são
eles: 0, 1, 2 e 3. No nível 0, o comando dos equipamentos se faz no quadro de comando do
próprio equipamento localizado no pátio da SE. No nível 1, existe uma unidade de controle de
posição (UCP), microprocessada, por vão e de operação em tempo real. A UCP possui todas
as funções relativas às operações dos equipamentos a ela relacionados. O nível 2 realiza todas
as funções de monitoramento e controle da SE, além de se comunicar com os níveis 1 e 3. Ele
é composto por uma unidade de controle da SE (UCS), um PC industrial que faz a interface
homem-máquina (IHM) e a rede local. O nível 3 permite a observação, a operação e a
administração da SE externamente à própria SE. O local de onde se controla a SE nesse nível
é comumente chamado de centro de controle do sistema (CCS) [11]. Normalmente, a
automação de SEs industriais vai até o nível 2, ficando o nível 3 para SEs de transmissão e
distribuição de energia elétrica.
3.1.5 - PROCESSO DE COMPRA
Uma vez determinados dados de alimentação da SE como tensão de entrada e níveis
dos curtos-circuitos no ponto de entrega, é possível fazer a especificação dos equipamentos a
serem instalados nela. Porém, como já mencionado anteriormente, esse não é um processo
isolado, visto que outros fatores, como, por exemplo, o layout da SE, também influenciam na
especificação desses equipamentos.
3.1.6 - COMISSIONAMENTO
O comissionamento é a etapa de testes após a construção da SE. Nele é verificado se a
SE foi construída conforme o projeto aprovado pelo contratante e se o mesmo segue todas as
suas especificações de qualidade. São também efetuados procedimentos operacionais padrões
para a verificação do desempenho dos equipamentos de manobra, proteção e medição. As
obras civis também devem ser observadas.
32
3.1.7 - ENERGIZAÇÃO
Depois de realizados, na fase de comissionamento, todos os testes necessários para
garantir a confiabilidade e a segurança da instalação, se atender a todos os requisitos
normativos, a SE será liberada para a energização. Nessa etapa, o corpo técnico responsável
pelo projeto, construção, fiscalização, operação e manutenção da SE deve estar presente.
3.2 - PROJETO ELETROMECÂNICO DA SE CAMPUS DO PICI UFC
3.2.1 - PLANEJAMENTO DA SE CAMPUS DO PICI UFC
Nesta etapa foi solicitada uma Avaliação de Viabilidade Técnica (AVT) na
concessionária e definidas as principais características da instalação: SE 69/13,8 kV aérea,
potência inicial 5/6,25 MVA com previsão de expansão e três alimentadores de 13,8 kV. Foi
decidido que, num primeiro momento, seria mais interessante a realização de um projeto para
a SE aérea em detrimento da SE abrigada, visto que normalmente se opta por esse tipo quando
se tem problemas de pouca área disponível para a construção da SE.
A partir das definições acima foi elaborado o Diagrama Unifilar que serviu como base
para elaboração do projeto eletromecânico da SE, mostrado na planta UFC.00, apêndice C.
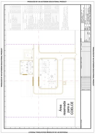
3.2.2 - ESCOLHA DO TERRENO
Na escolha do terreno para a localização de uma SE foi levado em consideração a sua
distância para o centro de cargas, bem como as suas vias de acesso e a infra-estrutura
disponível, conforme [11].
Inicialmente, pensou-se na realização do projeto no terreno da antiga subestação da
COELCE localizada dentro do Campus do Pici, mostrado na Figura 3.1. Porém, a existência
de algumas árvores e de um poço que serve de abastecimento de água para a comunidade,
33
além da passagem do circuito alimentador de 13,8 kV, limitaram a área necessária para o
projeto de uma SE desse porte e levaram à escolha de uma área de 80x80 m, que é o padrão
terreno de uma SE de pequeno porte da COELCE. O terreno escolhido está mostrado na
Figura 3.2.
Figura 3.1 – Terreno inicialmente proposto para a SE UFC CAMPUS DO PICI
Figura 3.2 – Terreno escolhido para a SE UFC CAMPUS DO PICI
34
3.2.3 - MALHA DE TERRA
A malha de terra deverá ser enterrada 50 cm abaixo do nível da terraplanagem e suas
interconexões, conexões às hastes de aterramento e aos trilhos dos transformadores deverão
ser feitas com solda exotérmica [11]. As conexões de equipamentos, estruturas e demais
partes metálicas devem ser do tipo aparafusadas.
Nos aterramentos da SE deverão ser usadas hastes de aterramento de aço cobreado. As
hastes devem ser dispostas conforme a Tabela 3.1 abaixo:
Tabela 3.1 – Número de hastes de aterramento
Descrição Número de hastes
Aterramento do neutro do transformador de
potência
01
Aterramento do neutro do transformador de
serviços auxiliares
01
Aterramento do conjunto de cada três para-
raios
01
Aterramento dos ângulos agudos nos cantos
das malhas
03 ou 04
Aterramento dos cantos da casa de comando 04, sendo uma em cada canto
Além disso, deverão ser postas hastes de 12 em 12 metros na periferia da malha de
terra e uma caixa de inspeção para medição da resistência da malha de terra em cada pátio da
SE, conforme mostrado na planta UFC.01.06, conforme apêndice C.
3.2.3.1 - ESTUDO DA RESISTIVIDADE DO SOLO
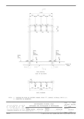
O sistema de aterramento deverá ser calculado com base no estudo preliminar da
resistividade do solo. A medição da resistividade deverá ser efetuada empregando o método
de Werner, segundo a NBR-7117 [11]. Para que se atinja uma maior precisão nos cálculos da
malha fundamentados nas medições da resistividade do solo, é importante que elas sejam
feitas após a terraplanagem.
3.2.3.2 - CÁLCULO DA MALHA DE TERRA
35
A área definida para o cálculo da malha de terra está mostrada na planta UFC.01.06,
apêndice C, e o seu cálculo, segundo [10], deverá ser feito considerando-se os estudos
definidos no item 3.2.3.1 e o valor da máxima corrente de curto-circuito fase-terra presumida
do lado da tensão mais baixa, disponível em [6].
3.2.3.2.1 - CONDUTORES DA MALHA DE TERRA
Foram realizados estudos históricos dos cálculos de malha de terra das SEs da
COELCE e os resultados apontaram para a padronização dos condutores da malha de 70 mm2
,
95 mm2
e 120 mm2
. O aterramento de estruturas, equipamentos, portões e demais partes
metálicas deve ser feito através de cabo de cobre nu de 70 mm2
[11].
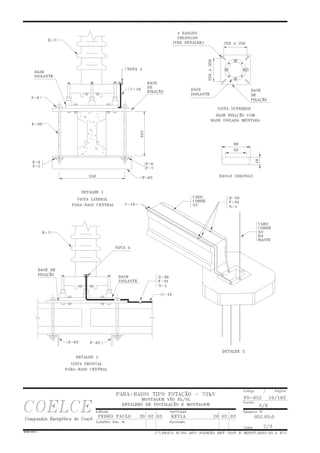
3.2.4 - BLINDAGEM
A proteção contra descargas atmosféricas é feita por hastes para-raios montadas sobre
as estruturas, conforme mostram as plantas UFC.06 e UFC.07, apêndice C, para os pátios de
72,5 kV e 15 kV, respectivamente. No critério de distribuição das hastes foi considerado um
ângulo de proteção e cobertura de 30°, conforme [11]. O aterramento das hastes para-raios
deverá ser feito na malha de terra por meio de solda exotérmica.
3.2.5 - ESTRUTURAS
No projeto da SE UFC Campus do Pici, foram utilizadas estruturas de concreto
armado padronizadas em [12] e [14].
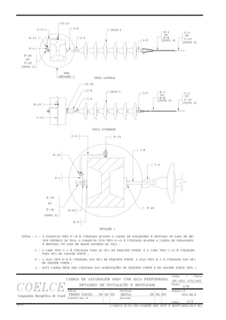
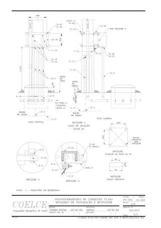
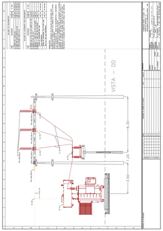
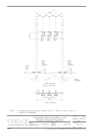
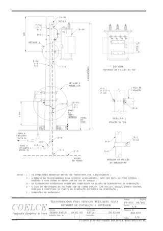
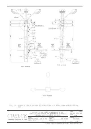
3.2.5.1 - ENTRADA DE LINHA
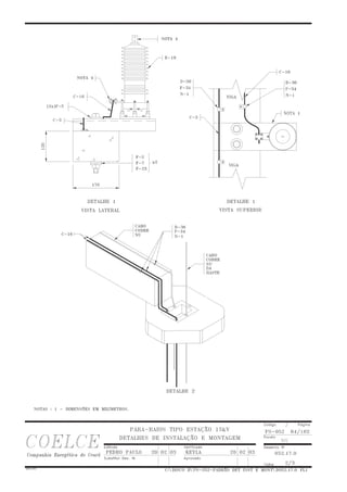
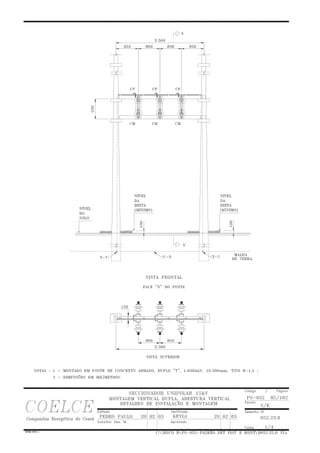
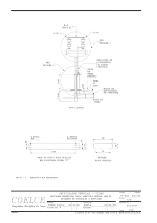
Na EL de 69 kV foi projetado um pórtico com postes tipo B-1,5, de 12 m e
engastamento de 1,80 m, e, para a fixação dos cabos de liga Al nu de 315mm², foi
36
especificada uma cadeia de ancoragem com alça preformada presa em uma viga Tipo H/I de
230x310x7100 mm com montagem horizontal. Essa viga deverá ser suportada por dois anéis
triplos tipo B-3 de dimensão interna 230x285 mm. Ainda nesse pórtico, foi projetada a
instalação de para-raios tipo estação fixados em uma viga Tipo H/I de 230x310x7100 mm
com montagem horizontal suportada por dois anéis triplos tipo B-6 de abertura interna
290x370 mm. O projeto dessa estrutura pode ser visto nas plantas UFC.04.
O conjunto de medição para faturamento, fornecido pela COELCE, formado por dois
TCs e três TPs, conforme indicado em [10], será instalado sobre postes do tipo B, de 4,5 m de
comprimento e engastamento de 2 m, e fixados em suportes Capitel tipo B-1 de abertura
interna 230x200 mm. O projeto dessa estrutura pode ser visto nas plantas UFC.04.
Para a instalação da chave seccionadora tripolar com lâmina de terra foi projetada uma
estrutura formada por dois postes do tipo B, de 4,5 m de comprimento e engastamento de 2 m,
dois suportes Jabaquara tipo B-3, modelo LT, de 1.630 mm e duas vigas tipo Maciça de
120x170x4600 mm, com montagem vertical.
Os TCs de proteção que serão associados ao relé do disjuntor 12L1 serão instalados
em uma estrutura formada por três postes do tipo B, de 4,5 m de comprimento e engastamento
de 2 m e suportes Capitel tipo B-1 de abertura interna 230x200 mm.
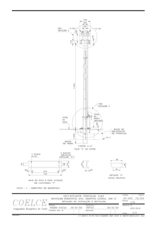
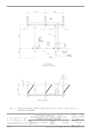
3.2.5.2 - BARRAMENTO 72,5 kV
O barramento de 72,5 kV, formado pelo mesmo cabo da EL de 72,5 kV, liga Al nu de
315mm², será preso nas duas extremidades por duas cadeias de ancoragem com alça
preformada. As cadeias de ancoragem serão fixadas em duas vigas Tipo H/I de
230x310x7100 mm com montagem horizontal, sustentadas por quatro anéis triplos tipo B-3
de dimensão interna 230x285 mm em postes tipo B de 10,5 m e engastamento de 2,1 m, que
formam o pórtico para o barramento de 72,5 kV. Nesse pórtico do lado do disjuntor de 72,5
kV, foram projetados duas colunas de isoladores de 72,5 kV, uma fixada pelo topo e outra
fixada pela base, para diminuir a tração suportada pelo cabo devido à distância entre a bucha
de saída do disjuntor de 72,5 kV e o ponto de conexão ao barramento de 72,5 kV. Estas
colunas estão fixadas em uma viga Tipo H/I de 230x310x7100 mm com montagem
horizontal, sustentada por dois anéis triplos tipo B-6 de dimensão interna 230x285 mm. No
37
mesmo pórtico do barramento de 72,5 kV, mas distante 17 m da base do disjuntor de 72,5 kV,
foi projetada a instalação de três para-raios tipo estação na mesma viga de fixação da cadeia
de ancoragem do barramento de 72,5 kV. Ainda nestes dois postes foi deixada, de reserva
para eventuais necessidades futuras, dois anéis triplos tipo B-6 de abertura interna 290x370
mm.
Devido à distância e a diferença de altura existente entre a bucha de saída do
transformador de potência 02T1 e a cadeia de ancoragem de 15 kV para cabos de 240 mm²,
não seria possível a ligação direta do transformador com a respectiva ancoragem de 15 kV.
Portanto, foi decidido incluir no projeto um poste do tipo B, de 10,5 m de comprimento e
engastamento de 2,1 m, com um anel triplo tipo B-3 de abertura interna 230x285 mm para a
fixação de uma segunda cadeia de ancoragem de 15 kV, que, juntamente com a cadeia de
ancoragem instalada no lado BT do Trafo 02T1, sustentarão os cabos Cu nu de 240 mm² que,
por meio de conectores T serão ligados às buchas BT do transformador 02T1. Este poste foi
posicionado a 7,5 m das estruturas de suporte do barramento de 72,5 kV e alinhado com elas
no lado mais próximo do transformador. Os detalhes da ancoragem e da disposição das
estruturas podem ser vistos nas plantas UFC.01, UFC.02 e UFC.03.
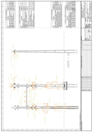
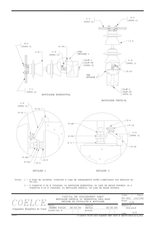
3.2.5.3 - CONEXÃO AT DO TRAFO 02T1
A conexão AT do transformador de potência 02T1 será feita por meio da chave
seccionadora tripolar 32L1 instalada em uma estrutura formada por dois postes tipo B, de 4,5
m de comprimento e engastamento de 2 m, dois suportes Jabaquara tipo B-3, modelo LT, de
1.630 mm e duas vigas tipo Maciça de 120x170x4600 mm, com montagem vertical. Os
detalhes da estrutura e o arranjo elétrico da chave 32L1 pode ser visto nas plantas UFC.02 e
UFC.04.
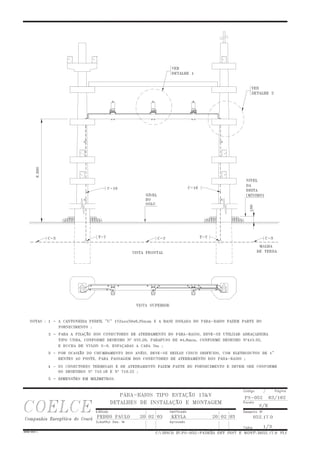
3.2.5.4 - CONEXÃO BT DO TRAFRO 02T1
A conexão BT do Trafo 02T1 será feita através do disjuntor de 15 kV, 11T1, com o
recurso de by pass pela chave seccionadora tripolar 31T1-6 e pelas chaves seccionadoras
38
unipolares 31T1-4 e 31T1-5. O disjuntor será montado em uma base cuja especificação faz
parte do escopo do projeto civil. As chaves serão montadas em vigas sustentadas por anéis
fixados nos postes componentes da estrutura suporte do barramento de 15 kV.
As chaves seccionadoras unipolares 31T1-4 e 31T1-5 estarão fixadas em uma viga do
tipo Maciça de 120x170x3100 mm e montagem vertical, suportada por quatro anéis triplos
tipo B-6 com abertura interna de 290x370 mm. A chave seccionadora tripolar de by pass,
31T1-6, será instalada em duas vigas do tipo Maciça de 120x170x3100 mm e montagem
vertical, suportadas por dois suportes Jabaquara tipo B-3, modelo LT, de 730 mm. Estes dois
conjuntos estão fixados em dois postes tipo B, de 10,5 m de comprimento e engastamento de
2,1 m.
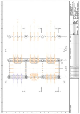
3.2.5.5 - BARRAMENTO DE 15 kV
As estruturas suporte do barramento de 15 kV foi projetada de acordo com o número
de alimentadores de 13,8 kV. Basicamente, ela é formada por duas fileiras de postes tipo B
de 10,5 m e engastamento de 2,1 m, que formam dois quadrados de lado 3,5 m que
compartilham um lado. Essa estrutura modular de barramento permite a expansão de
alimentadores em função da carga de maneira econômica e simplificada.
No primeiro módulo, abaixo da estrutura em que será fixada a cadeia de ancoragem
dos cabos de 15 kV vindos das buchas BT do transformador 02T1, ficam os bays do disjuntor
11T1 e do religador 21L1. As chaves seccionadoras unipolares – 31T1-4, 31T1-5, 31L1-4 e
31L1-5 – são de montagem vertical e serão instaladas em duas vigas, por bay, do tipo Maciça
de 120x170x3100 mm e montagem vertical e as chaves seccionadoras tripolares de by pass –
31T1-6 e 31L1-6 – são de montagem horizontal e serão instaladas em duas vigas do tipo
Maciça de 120x170x3480 mm de montagem vertical, por bay. No caso das chaves de
montagem vertical, as suas vigas serão suportadas por dois anéis triplos, por viga, tipo B-6
com abertura interna de 290x370 mm, cada viga. Para as chaves de montagem horizontal as
suas vigas serão suportadas por dois suportes Jabaquara duplo tipo LT de 730 mm.
No segundo módulo, a estrutura de suporte das chaves seccionadoras unipolares,
21L2-4 e 21L2-5, e da chave seccionadora tripolar de by pass, 21L1-6, relacionadas ao
39
religador 21L2 será idêntica à do religador 21L1. O TSA e os TPs de 15 kV serão instalado
em um poste tipo B de 6 m de comprimento e engastamento de 2,3 m.
O barramento de 15 kV será composto por cabo Cu nu de 240 mm² e será sustentado
nas suas duas extremidades por duas cadeias de ancoragem com alças preformadas para cabo
de 240 mm².
3.2.5.6 - ILUMINAÇÃO DOS PÁTIOS E ACESSOS
As luminárias serão instaladas em postes tipo B de 9 m de comprimento e
engastamento de 1,5 m.
3.2.6 - ORÇAMENTO DA SE
Foi feito um levantamento baseado nas últimas aquisições de equipamentos e
estruturas para a construção das SEs da COELCE e realizou-se um orçamento completo da
obra da SE UFC CAMPUS DO PICI. Nele, considerou-se, por exemplo, a instalação de um
sistema digital de automação baseado em uma SE de pequeno porte no valor de R$
358.974,36. Também foram adicionados custos com mão-de-obra civil e de instalação dos
equipamentos. Como a malha de terra não foi calculada devido a impossibilidade de realizar a
medição da resistência de aterramento sem a terraplanagem do terreno, o único material que
esse orçamento não contempla é o vinculado à malha de terra. Sendo assim, excluindo-se a
malha de terra, o custo estimado para a SE UFC CAMPUS DO PICI é de R$ 2.156.255,58.
3.3 - CONCLUSÃO
Neste capítulo foi introduzido todo o processo de implantação de uma SE. Para isso,
foram identificados e analisados todos os subprocessos que formam o macroprocesso
Implantação de uma SE Nova. O conhecimento de cada um desses processos é imprescindível
pois eles não são independentes e, normalmente, se inter-relacionam de forma que as
definições em um processo afete diretamente o andamento de outro.
40
Em seguida, foi dada ênfase no projeto eletromecânico da SE UFC – CAMPUS DO
PICI. O planejamento da SE, a escolha do terreno e as indicações para o projeto da malha de
terra a partir dos estudos do solo, foram descritos em detalhes. Também foram descritas as
estruturas de suporte e fixação por bay da SE e, por fim, mencionou-se o orçamento total da
SE a ser descrito no apêndice B desta monografia.
41
CAPÍTULO 4
CONCLUSÃO E DESENVOLVIMENTOS FUTUROS
4.1 - CONCLUSÃO
Nste trabalho foi apresentada uma alternativa de configuração para o projeto eletrome-
cânico da SE UFC CAMPUS DO PICI, seguindo, o máximo possível, os padrões e especifi-
cações técnicas de equipamentos da concessionária local.
Inicialmente, estava prevista a construção da SE na área da antiga SE Pici da Coelce
dentro no Campus da UFC. Porém, devido à existência de algumas árvores e um poço que
serve à comunidade, optou-se por locar uma área de 80x80 m adjacente a ela. Como não há
problema de falta de espaço para a construção da SE, optou-se pela realização do projeto de
uma SE aérea que, necessariamente, ocupa maior área que uma SE semi-abrigada.
A configuração e locação de estruturas escolhida para a SE permitiu que ela ficasse to-
talmente acessada e, assim, não deverá haver problema para a instalação de equipamentos e
expansão futura.
A expansão foi um fator bastante levado em consideração durante o projeto. Dessa for-
ma, a casa de comando foi posicionada de maneira a ficar mais próxima da maior concentra-
ção de cabos de controle e não atrapalhar o barramento de 15 kV. Assim, ela foi posicionada
próxima ao pátio de 15 kV, mas livrando o lado onde, futuramente, poderá ser instalado um
terceiro alimentador. A instalação desse terceiro alimentador, por sua vez é um ponto interes-
sante do padrão modular para barramentos que a COELCE possui. Dessa maneira, reduz-se
bastante o custo de expansão da instalação.
Sabendo que a operação e manutenção de uma SE totalmente aérea requer cuidados es-
peciais, podendo, até mesmo, ser mais cara, foi pensado na disposição dos transformadores de
força de maneira que caso se queira fazer o barramento de 15 kV em um switchgear, o pátio
de 72,5 kV projetado poderá ser aproveitado. Para isso, bastaria a instalação de muflas na saí-
da de baixa tensão do transformador de força e os cabos poderiam seguir subterrâneos para a
casa de comando. Assim, uma sugestão para trabalhos futuros é a comparação do custo dessa
SE com o barramento de 15 kV em switchgear.
Por fim, foi feito um orçamento do custo total das obras da SE UFC CAMPUS DO PI-
CI. Nele, foram incluídos todos os possíveis gastos com materiais e serviços. Sendo o valor
42
estimado da obra completa de R$ 2.156.255,58. Outra sugestão para trabalhos futuros é o es-
tudo da taxa de atratividade financeira para a realização da obra pela redução na tarifa de
energia elétrica que universidade terá devido a instalação de uma SE 69/13,8 kV.
4.2 - TRABALHOS FUTUROS
Devido ao estabelecimento de prazo para a entrega desta monografia e a falta de recur-
sos disponíveis para a realização dos estudos preliminares, não foi possível a realização da
terraplanagem e, assim, a medição da resistividade do solo. Dessa forma, apesar de definida a
área e indicada a metodologia para a medição da resistividade do solo, o projeto da malha de
terra deverá ser realizado após o estudo do solo e a terraplanagem.
Esta monografia tratou essencialmente do projeto eletromecânico da SE UFC - CAM-
PUS DO PICI, e, conforme exposto no Capítulo 3, devem ser realizados outros projetos a par-
tir deste, para que se tenha um projeto completo da SE. São eles: projeto civil, projetos elétri-
cos e de automação e estudo da rede de distribuição.
Uma sugestão para trabalhos futuros e que deve balizar qualquer trabalho de engenharia
é a realização de um estudo de viabilidade econômica da obra. Dessa forma, devem ser reali-
zados estudos para a verificação da atratividade financeira sob as condições de consumidor
livre e consumidor cativo.
41
REFERÊNCIAS BIBLIOGRÁFICAS
[1] Presidência da República Federativa do Brasil. Retomada do crescimento econômico foi
responsável pelo consumo recorde de energia em 2010 [on-line]. Disponível em:
http://www.brasil.gov.br/noticias/arquivos/2011/01/05/retomada-do-crescimento-
economico-foi-responsavel-pelo-consumo-recorde-de-energia-em-2010. (acessado em
21/03/2011).
[2] Operador Nacional do Sistema Elétrico. Boletim de Carga Anual: Avaliação da Evolução
da Carga x PIB – Ano de 2008 [on-line]. Disponível em:
http://www.ons.org.br/download/sala_imprensa/Boletim_Carga_2008-PIB.pdf.
(acessado em 21/03/2011).
[3] Agência Nacional de Energia Elétrica. Procedimentos de Distribuição de Energia Elétrica
no Sistema Elétrico Nacional – PRODIST [on-line]. Disponível em:
http://www.aneel.gov.br/area.cfm?idArea=82. (acessado em 28/03/2011).
[4] Agência Nacional de Energia Elétrica. Procedimentos de Distribuição de Energia Elétrica
no Sistema Elétrico Nacional – PRODIST. Módulo 1 – Introdução [on-line]. Disponível
em:  http://www.aneel.gov.br/arquivos/PDF/M%C3%B3dulo1_Revisao_2.pdf .
(acessado em 28/03/2011).
[5] Agência Nacional de Energia Elétrica. Procedimentos de Distribuição de Energia Elétrica
no Sistema Elétrico Nacional – PRODIST. Módulo 3 – Acesso ao Sistema de Distribuição
[on-line]. Disponível em:
http://www.aneel.gov.br/arquivos/PDF/Modulo3_Revisao_3_Retificacao_1.pdf.
(acessado em 28/03/2011).
42
[6] Barros, J. V. C. Estudo de viabilidade econômica e das proteções da subestação de 69-
13,8 kV do Campus do Pici da Universidade Federal do Ceará, Universidade Federal do
Ceará – UFC, 2010, 94p.
[7] Filho, João Mamede. Manual de Equipamentos Elétricos. 3a
Ed. Rio de Janeiro: LTC –
Livros Técnicos e Científicos, 2005, 778 p.
[8] Rao, S. Electrical Substation: engineering  practice. 3a
Ed. New Delhi: Khanna
Publishers, 2009, 568 p.
[9] Leão, R. P. S. Capítulo 4 - Distribuição de Energia [on-line]. Disponível em:
http://www.dee.ufc.br/~rleao/GTD/Apostila_GTD.htm. (acessado em 01/10/2010).
[10]COELCE. NT-004: Fornecimento de Energia Elétrica em Alta Tensão – 69 kV [on-line].
R-05. Fortaleza: Área de Normas e Procedimentos, 2011. Disponível em:
https://www.coelce.com.br/sobrecoelce/normastecnicas/normas-tecnicas.aspx. (acessado
em 22/05/2011).
[11]COELCE. CP-011: Critério de Projeto – Subestação de Distribuição Aérea e Semi-
abrigada 72,5-15 kV [on-line]. Fortaleza: Área de Normas e Procedimentos, 2003.
Disponível em:  https://www.coelce.com.br/sobrecoelce/normastecnicas/criterios-de-
projetos.aspx. (acessado em 22/05/2011).
[12]COELCE. PS-051: Padrão de Subestação – Subestação de Distribuição Aérea e Semi-
abrigada 72,5-15 kV [on-line]. R-02. Fortaleza: Área de Normas e Procedimentos, 2005.
Disponível em:  https://www.coelce.com.br/sobrecoelce/normastecnicas/padroes-de-
subestacao.aspx. (acessado em 22/05/2011).
[13]COELCE. PS-052: Padrão de Subestação – Detalhes de Instalação e Montagem de
Equipamentos e Materiais 72,5 – 15 kV [on-line]. R-00. Fortaleza: Área de Normas e
Procedimentos, 2003. Disponível em:
43
https://www.coelce.com.br/sobrecoelce/normastecnicas/padroes-de-subestacao.aspx.
(acessado em 22/05/2011).
[14]COELCE. ET-300: Especificação Técnica – Postes de Concreto Armado [on-line]. R-04.
Fortaleza: Área de Normas e Procedimentos, 2009. Disponível em: 
https://www.coelce.com.br/sobrecoelce/normastecnicas/especificacoes-tecnicas.aspx.
(acessado em 22/05/2011).
[15]Kindermann, Geraldo. Curto-circuito. 2ª Ed. Porto Alegre: Sagra Luzzatto, 1997, 221 p.
[16]Grainger, John J., Stevenson, William D. Power System Analysis. USA: McGraw-Hill,
2004, 787 p.
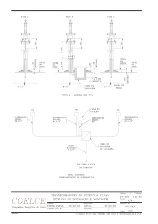
APÊNDICE A
(MEMORIAL DESCRITIVO DO PROJETO
ELETROMECÂNICO DA SE 69/13,8 KV UFC – CAMPUS
DO PICI)
SE UFC CAMPUS
DO PICI
Memorial Descritivo
SE Nova 72,5/15kV
Data: Maio/2011
TÍTULO: SE UFC CAMPUS DO PICI – SE Nova 72,5/15kV
DATA: 27/06/2011
ELABORAÇÃO: João Victor da Costa Vale PÁGINA: 2/19
Conteúdo
1. OBJETIVO ..................................................................................................... 3
2. LOCALIZAÇÃO DA SUBESTAÇÃO..................................................................... 3
3. CONDIÇÕES DE SERVIÇO .............................................................................. 3
4. CRITÉRIOS DE PROJETO ............................................................................... 3
5. DESCRIÇÃO DOS EQUIPAMENTOS.................................................................. 7
6. DOCUMENTOS DE REFERÊNCIA DO PROJETO............................................... 18
TÍTULO: SE UFC CAMPUS DO PICI – SE Nova 72,5/15kV
DATA: 27/06/2011
ELABORAÇÃO: João Victor da Costa Vale PÁGINA: 3/19
1. OBJETIVO
Este memorial descritivo descreve o projeto eletromecânico referente à construção
da SE UFC CAMPUS DO PICI, nova, 72,5/15 kV, capacidade inicial instalada de
6,25MVA com previsão de expansão para 12,5 MVA. Para isso, foi seguido o padrão
de SE Pequeno Porte COELCE. Esta obra visa atender o crescimento da demanda
da universidade, melhorar a qualidade da energia fornecida para suas cargas e
possibilitar a economia com a redução na tarifa de energia.
2. LOCALIZAÇÃO DA SUBESTAÇÃO
A Subestação será localizada dentro do terreno do Campus do Pici da UFC, no
município de Fortaleza, no estado do Ceará.
3. CONDIÇÕES DE SERVIÇO
Os equipamentos a serem instalados na subestação UFC CAMPUS DO PICI,
estarão submetidos às seguintes condições de serviço:
Altitude ..............................................................abaixo de 1000m
Temperatura ambiente máxima .........................40°C
Temperatura média diária .................................30°C
Umidade relativa do ar ......................................até 100%
4. CRITÉRIOS DE PROJETO
A SE foi concebida e projetada respeitando o estabelecido na NT-004 e seguindo os
padrões COELCE para SE’s 72,5/15kV. PS-051(PADRÃO DE SUBESTAÇÃO DA
COELCE) e PS-052(PADRÃO DE DETALHES DE INSTALAÇÃO E MONTAGEM DE
EQUIPAMENTOS E MATERIAIS) apresentando as seguintes características:
4.1Suprimento
A Subestação UFC CAMPUS DO PICI será suprida na tensão 72,5kV, através de
uma SE Derivadora conectada à LDAT Pici II-Bom Sucesso (02L5) em condutor
315mm² CAL Elgin.
TÍTULO: SE UFC CAMPUS DO PICI – SE Nova 72,5/15kV
DATA: 27/06/2011
ELABORAÇÃO: João Victor da Costa Vale PÁGINA: 4/19
4.2Circuitos Alimentadores de 15 kV
O barramento de 15 kV terá capacidade para suprir três alimentadores aéreos de
distribuição. Os circuitos alimentadores de distribuição serão construídos com cabo
de cobre, bitola 120 mm², até a primeira estrutura de saída.
4.3Estrutura Suportes de Barramento
As estruturas suporte dos barramentos de 72,5 kV e 15 kV serão construídas com
peças pré-moldadas em concreto, constituída por postes, anéis, suportes e vigas,
formando um conjunto padrão COELCE.
Compõem o conjunto de estruturas auxiliares suportes dos secionadores,
transformadores de corrente e de potencial e transformador de serviços auxiliares.
4.4Barramentos
Os barramentos, de 72,5 kV e de 15 kV, serão do tipo barra simples. A barra de 72,5
kV será construída com condutor 315 mm² CAL Elgin, com espaçamento entre fases
de 2.130 mm e entre fase-terra 1.100 mm.
A barra de 15 kV será composta de um condutor de cobre nu por fase, formação 37
fios, bitola 240 mm², cujos espaçamentos fase-fase e fase-terra serão de 800 e 540
mm, respectivamente.
4.5Bay de Transformação
Será instalado um transformador de potência, classe de tensão 72,5 kV-15 kV e
potência 5,0/6,25 MVA, equipado com ventilação forçada em dois.
4.6Serviços Auxiliares
O sistema de serviços auxiliares em corrente alternada (CA) será o padrão
COELCE, na tensão 380/220 V, cujas cargas serão supridas por um transformador
tipo distribuição, classe 15-1,2 kV e potência de 75 kVA.
O sistema de serviços auxiliares em corrente contínua (CC) será em 125 Vcc, sendo
composto por um retificador/carregador estático, trifásico 380 Vca/125 Vcc, e bateria
estacionária, chumbo-ácido, 60 elementos, 100 Ah. Este conjunto suprirá as cargas
de sinalização, controle e proteção, além das cargas de iluminação de emergência
da subestação.
TÍTULO: SE UFC CAMPUS DO PICI – SE Nova 72,5/15kV
DATA: 27/06/2011
ELABORAÇÃO: João Victor da Costa Vale PÁGINA: 5/19
4.7Sistema de Proteção
•
•
•
•Entrada de Linha 72,5 kV
O bay de entrada de linha será com disjunção automática.
A proteção contra sobretensões de origem atmosférica ou surto de manobra
será exercida por pára-raios tipo estação 72 kV, 10 kA; instalados no primeiro
ponto de conexão do bay de entrada de linha.
•
•
•
•Transformador de Potência 72,5/15 kV
A proteção contra falhas internas na unidade transformadora 72,5/15 kV será
exercida pelo conjunto de dispositivos de proteção que se segue:
Relé de gás, Bucholz, função 63.
Válvula de alivio de pressão, função 63A.
Relé de temperatura do enrolamento, função 49.
Relé de temperatura do óleo, função 26.
•
•
•
•Transformador de Serviços Auxiliares
A proteção contra sobrecorrente do transformador de serviços auxiliares será
feita por meio de elos fusíveis 5A, tipo rápido, os quais serão instalados em
secionadores fusíveis 24 kV, 100 A, 6,3 kA.
•
•
•
•Circuitos de Saída de Alimentadores 15 kV
Os circuitos aéreos de alimentadores 15 kV serão dotados de proteção
conforme especificação técnica da COELCE.
Os relés serão sensibilizados por TC’s de bucha do próprio religador e
atuarão diretamente sobre a bobina de desligamento deste.
A proteção contra sobretensões será feita por meio de pára-raios tipo
distribuição, 15 kV, 10 kA, instalados na primeira estrutura de saída do
alimentador.
4.8Sistema de Medição
•
•
•
•Entrada de linha de 72,5 KV
Na EL de 72,5 kV serão feitas as medições de corrente, tensão, potência ativa
e reativa e energia ativa e reativa e demanda, através um conjunto de
medição formado por dois TCs e três TPs fornecidos pela COELCE e de
medidor multifunção instalado no painel de medição de faturamento
TÍTULO: SE UFC CAMPUS DO PICI – SE Nova 72,5/15kV
DATA: 27/06/2011
ELABORAÇÃO: João Victor da Costa Vale PÁGINA: 6/19
•
•
•
•Serviços Auxiliares
Na barra de 380/220Vca de serviços auxiliares da subestação serão feitas às
medições de tensão, corrente e energia ativa do consumo próprio da
Subestação.
Os medidores estarão instalados no quadro de serviços auxiliares da
subestação.
4.9Aterramento
O sistema de aterramento da subestação será composto por eletrodos
horizontais (Malha de Terra) e eletrodos verticais (Hastes Cobreadas). A
Malha será em cabo de cobre nu, têmpera meio-dura, bitola 70 mm² e
eletrodos verticais com 3 m de comprimento, constituídos de uma haste
cobreada com 20 mm (3/4 “) de diâmetro e 3,0 metros de comprimento com
espessura mínima de cobre 0,254 milímetros soldada exotermicamente a
cabo de cobre nu, bitola 70 mm².
4.10Blindagem
A blindagem das instalações da subestação será feita por pára-raios tipo
hastes metálicas perfil L de comprimento 4,60 m, instalados nos postes das
estruturas suportes dos barramentos.
No setor de 72,5 kV será instalado um (01) pára-raios em cada poste com
espaçamento de 7,5 m e no setor de 15 kV os pára-raios serão instalados em
postes alternados com espaçamento de 7,0 metros.
4.11Iluminação e Tomadas dos Pátios
A iluminação dos pátios da subestação será feita por lâmpadas vapor de
sódio, híbridas, 240 V, 150 Watts, instaladas em luminárias, uso externo. As
luminárias para iluminação dos pátios 72,5 kV e 15 kV serão fixadas em
postes tipo D, altura de 9 m alocados próximos ao pátio e também próximo ao
muro limítrofe do terreno da Subestação e ao longo do acesso. Além desta
iluminação a subestação será dotada ainda de iluminação de emergência e
tomadas trifásicas 380 V, 30 A e monofásicas 220 V, 15 A, instaladas no
interior dos pátios de 72,5 kV e 15 kV da SE. Os circuitos de alimentação e
tomadas dos pátios serão comandados a partir de disjuntores termo-
magnéticos moldados a seco, instalados no quadro de serviços auxiliares da
subestação.
TÍTULO: SE UFC CAMPUS DO PICI – SE Nova 72,5/15kV
DATA: 27/06/2011
ELABORAÇÃO: João Victor da Costa Vale PÁGINA: 7/19
4.12Nível Básico de Isolamento
O NBI utilizado na SE UFC CAMPUS DO PICI classe 72,5-15kV, é o
recomendado e padronizado pela ABNT, qual seja:
Classe Isolamento Nível de Isolamento
72,5 kV 350kV
15 kV 110 kV
5. DESCRIÇÃO DOS EQUIPAMENTOS
5.1Equipamentos Externos do Setor de 72,5kV
•
•
•
•Pára-raios tipo estação
a) Descrição
Os pára-raios instalados nos circuitos de entradas e saídas de linha 72,5 kV e
no bay de transformação serão do tipo estação 72 kV, 10 kA para proteção
contra descargas atmosféricas diretas.
b) Características Elétricas
Fabricante........................................................a definir
Tipo..................................................................
Tensão nominal .............................................. 72 kV
Tensão disruptiva máxima (1,2x50 µs) ........... 270 kV
Tensão disruptiva mínima à 60 Hz .................. 112,5 kV
Tensão residual máxima de descarga
para corrente 10 kA (8 x 20 µs) ....................... 198 kV
Corrente nominal de descarga (8 x 20 µs)....... 10 kA
Corrente de curta duração (4 x 10 µs) ............ 100 kA
•
•
•
•Seccionadores Tripolares
a) Descrição
TÍTULO: SE UFC CAMPUS DO PICI – SE Nova 72,5/15kV
DATA: 27/06/2011
ELABORAÇÃO: João Victor da Costa Vale PÁGINA: 8/19
Os seccionadores tripolares terão montagem vertical ou horizontal, com
abertura lateral e comando manual através de um mecanismo composto por
hastes de ferro verticais e horizontais, de tal maneira que os pólos do
secionados são acionados em grupo.
b) Características Elétricas
Fabricante........................................................a definir
Tipo..................................................................a definir
Tensão nominal ..............................................72,5 kV
Corrente nominal ............................................1250 A
Corrente suportável de curta duração .............20 kA
Freqüência nominal .........................................60 Hz
Nível básico de isolamento .............................350 kV
Operação ........................................................Manual
Distância entre pólos........................................2,13 m
•
•
•
•Transformador de Corrente 72,5 kV
a) Características Elétricas
Fabricante........................................................a definir
Tipo..................................................................a definir
Tensão nominal ..............................................72,5 kV
Tipo de serviço.................................................Proteção/Medição
Classe de exatidão ..........................................10B200/0,3C2,5 a C50
Relação de transformação ..............................200/400/600x400/800/1200-5-
5A
Nível de Isolamento .........................................350 kV
•
•
•
•Disjuntor 72,5 kV
a) Descrição
O disjuntor de 72,5 kV é do tipo SF6, uso externo, trifásico, com comando
automático.
b) Características Elétricas
Fabricante........................................................a definir
Tipo..................................................................a definir
TÍTULO: SE UFC CAMPUS DO PICI – SE Nova 72,5/15kV
DATA: 27/06/2011
ELABORAÇÃO: João Victor da Costa Vale PÁGINA: 9/19
Tensão nominal ..............................................72,5 kV
Freqüência nominal .........................................60 Hz
Corrente nominal ............................................1250 A
Corrente de curto circuito simétrico .................25 kA
Corrente de estabelecimento ..........................a definir
Tensão do motor..............................................220 Vca
Tensão da bobina de fechamento....................125 Vcc
Tensão da bobina de abertura.........................125 Vcc
Tensão da impulso pleno ................................350 kV
Tensão suportável 60 Hz 1 min ......................140 Kv
•
•
•
•Transformador de potência
a) Descrição
Será instalado transformador de potência trifásico, com dois enrolamentos
com bobinamento em condutor de cobre, imerso em óleo isolante, com
terminais acessíveis através de buchas capacitivas não condensáveis. O
transformador apresenta seus componentes principais acondicionados em um
tanque em chapa de aço que suporta o vácuo pleno, enquanto seus
acessórios estão montados junto ao tanque constituindo-se numa peça única.
Esta peça será instalada sobre trilhos em uma base de conMCBto armado.
Constitui-se, ainda, dos seguintes acessórios:
 Radiadores de resfriamento do óleo;
 Ventiladores (1º e 2º estágios);
 Termômetro de temperatura do enrolamento;
 Termômetro de temperatura do óleo;
 Indicador de nível de óleo;
 Secador de ar sílica-gel;
 Relé Bucholz;
 Tanque de expansão de óleo.
b) Características Elétricas
Fabricante .......................................................
Nº Série ...........................................................
Tipo .................................................................PTOE
Ano de fabricação ...........................................
Potência nominal ............................................ 5,0/6,25 MVA
Classe tensão superior ................................... 72,5 kV
Classe tensão inferior ..................................... 15 kV
Número de fases ............................................. 3
Isolamento ...................................................... Papel e óleo
TÍTULO: SE UFC CAMPUS DO PICI – SE Nova 72,5/15kV
DATA: 27/06/2011
ELABORAÇÃO: João Victor da Costa Vale PÁGINA: 10/19
Resfriamento ................................................... ONAN/ONAF1
Nível Básico de Isolamento Primário .............. 350 kV
Nível Básico de Isolamento Secundário .......... 110 kV
Ligação primária ............................................. Delta
Ligação secundária ......................................... Estrela c/ neutro acessível
Impedância a 75°C, base 6,25MVA:
Relação 69300-13800V ..................................%
Relação 67650-13800V ..................................
Relação 66000-13800V ..................................%
Relação 64350-3800V .....................................
Relação 62700-13800V ...................................%
5.2Equipamentos Externos do Setor de 15kV
•
•
•
•Transformador de Corrente 15KV
a) Características Elétricas
Fabricante........................................................a definir
Ano ..................................................................a definir
Tipo .................................................................
Nº Série ...........................................................
Tensão Nominal ..............................................15 kV
Tipo de serviço.................................................Proteção e Medição
Classe de exatidão ..........................................0,6C50 - 10B200
Relação de transformação .............................200/400/600x
.........................................................................400/800/1200-5-5A
Nível de isolamento .........................................110 kV
Fator térmico ...................................................1,2
•
•
•
•Disjuntor 15kV
a) Descrição
O disjuntor de 15kV é do tipo a vácuo/SF6, uso externo, trifásico, com
comando automático, com transformador de corrente acoplado.
TÍTULO: SE UFC CAMPUS DO PICI – SE Nova 72,5/15kV
DATA: 27/06/2011
ELABORAÇÃO: João Victor da Costa Vale PÁGINA: 11/19
b) Características Elétricas
Fabricante .......................................................á definir
Tipo .................................................................á definir
Ano de fabricação ........................................... 2006
Tensão nominal .............................................. 15 kV
Corrente nominal ............................................ 1250A
Corrente de curto circuito simétrico ................. 75ms
Tempo de interrupção total ............................. 25kA
Freqüência nominal ......................................... 60 Hz
Tensão do motor ............................................. 220 Vca
Tensão da bobina de fechamento ................... 125 Vcc
Tensão da bobina de abertura ........................ 125 Vcc
•
•
•
•Secionadores Tripolares 15kV
a) Descrição
Os secionadores tripolares são montados em base de ferro galvanizado,
perfil “U” e serão instalados na posição horizontal ou vertical na estrutura do
barramento de 15kV, de onde serão comandadas manualmente, através de
mecanismo próprio. O isolamento fase-terra é feito por isoladores tipo
pedestal, classe TR-4. Cada secionador será ainda dotado de conectores de
linha e de aterramento.
b) Características Elétricas
Fabricante ....................................................... á definir
Tensão nominal .............................................. 15 kV
Corrente nominal ............................................ 630 A / 1250A
Corrente suportável de curta duração ............. 16 kA
Valor de crista mínima da corrente
Suportável (valor de pico) ............................... 32 kA
Freqüência nominal ......................................... 60 Hz
Nível básico de isolamento ............................. 110 kV
Operação ........................................................ Manual
TÍTULO: SE UFC CAMPUS DO PICI – SE Nova 72,5/15kV
DATA: 27/06/2011
ELABORAÇÃO: João Victor da Costa Vale PÁGINA: 12/19
•
•
•
•Secionadores Unipolares 15kV
a) Descrição
Os secionadores unipolares são montados em base de ferro galvanizado,
perfil “U” e serão instalados na posição vertical e horizontal, na estrutura do
barramento de 15kV, donde serão comandadas normalmente por
intermédio de vara-de-manobra. O isolamento fase-terra é feito por
isoladores tipo pedestal, classe TR-4. Cada secionador será ainda dotado
de conectores de linha e de aterramento.
b) Características Elétricas
Fabricante........................................................ á definir
Tensão nominal .............................................. 15 kV
Corrente nominal ............................................ 630 A / 1250 A
Corrente suportável de curta duração ............. 16 kA
Freqüência nominal ......................................... 60 Hz
Nível básico de isolamento ............................. 110 kV
Operação manual ........................................... vara-de-manobra
•
•
•
•Religador 15kV
a) Descrição
Os religadores são interruptores protetores, trifásicos, de faltas, para o
setor de distribuição e de alimentação. A unidade é capaz de detectar
condições de defeito e abrir automaticamente, de modo simultâneo, as três
fases, e então religar o circuito ao qual está conectado, após um retardo de
tempo, pré-ajustado. Se as condições de defeito permanecer, a unidade
reabrirá automaticamente. Este ciclo O-C-O poderá Repetir-se por até três
vezes. Os equipamentos podem ser operados manual ou eletricamente,
através de comando local instalado em seu próprio painel.
b) Características Elétricas
TÍTULO: SE UFC CAMPUS DO PICI – SE Nova 72,5/15kV
DATA: 27/06/2011
ELABORAÇÃO: João Victor da Costa Vale PÁGINA: 13/19
Fabricante....................................................a definir
Tipo .............................................................a definir
Tensão nominal .......................................... 15kV
Freqüência Máxima .................................... 60Hz
Corrente nominal ........................................ 800 A
Corrente interrupção simétrica .................... 16 kA
Fator de assimétrica ................................... 1,2
Ciclo de operação........................................O-(0,3 a 240)seg-
.....................................................................CO-(5a 240)seg
.....................................................................CO-(5 a 240)seg-CO
Tempo de interrupção ................................. 3,5 CICLOS
Nível básico de isolamento ......................... 110 kV
Tensão do motor ......................................... 125 Vcc
Tensão da bobina de fechamento .............. 125 Vcc
Tensão da bobina de abertura .................... 125 Vcc
RTC bucha .................................................. a definir
Classe de Exatidão ..................................... 10B400
Fator térmico................................................................ 1,2
Relê Microprocessado ................................ a definir
•
•
•
•Transformador de Potencial 15kV
a) Descrição
Os transformadores de potencial são indutivos, monofásicos com
isolamento a óleo e papel, apresentam suas buchas montadas na parte
superior. Os mesmos serão montados sobre suporte metálicos fixados em
viga de conMCBto armado. Os TP’s 15kV alimentam os medidores
associados ao barramento de 15kV, e o sistema de controle do banco de
capacitores.
b) Características Elétricas
Fabricante.................................................. a definir
Tipo............................................................ a definir
Tensão nominal ........................................ 15 kV
Tensão primária nominal .......................... 13,8 kV
Tensão secundária nominal ...................... 115 kV
TÍTULO: SE UFC CAMPUS DO PICI – SE Nova 72,5/15kV
DATA: 27/06/2011
ELABORAÇÃO: João Victor da Costa Vale PÁGINA: 14/19
Relação de transformação ........................ 120
Freqüência Nominal .................................. 60 Hz
Classe de exatidão ...................................0,6P200
Potência térmica ....................................... 2000VA
Nível Básico de Isolamento ...................... 110 kV
•
•
•
•Pára-Raios 15kV



 Pára-raios tipo estação
a) Descrição
Serão instalados pára-raios tipo estação 15kV, 10kA no barramento de
15kV e pára-raios tipo distribuição 15kV, 10kA nas primeiras estruturas
de saída dos alimentadores 15kV para proteção contra descargas
atmosféricas diretas.
b) Características elétricas
Fabricante .................................................a definir
Tipo ...........................................................
Tensão nominal ........................................ 15 kV
Tensão disruptiva máxima (1,2µs) ............ 54 kV
Tensão disruptiva mínima a 60Hz ............ 22,5 kV
Tensão residual máxima de descarga
para corrente 10kA (8x20µs) .................... 46kV
Corrente nominal de descarga (8x20µs) ... 10 kA
Corrente de curta duração (4x20µs) ......... 100 Ka



 Pára-raios tipo Distribuição
a) Características elétricas
Fabricante ....................................................... a definir
Tipo .................................................................
Tensão nominal .............................................. 15 kV
Tensão disruptiva máxima (1,2 x 50 µs) ......... 46 kV
Tensão disruptiva mínima a 60 Hz .................. 22,5 kV
Tensão residual máxima de descarga para
10 kA (8 x 20 µs) .............................................36 kV
TÍTULO: SE UFC CAMPUS DO PICI – SE Nova 72,5/15kV
DATA: 27/06/2011
ELABORAÇÃO: João Victor da Costa Vale PÁGINA: 15/19
Corrente nominal de descarga (8 x 20 µs) 10 kA
Corrente de curta duração (4 x 10 µs) ............ 100 kA
•
•
•
•Transformador Serviços Auxiliares
a) Características Elétricas
Fabricante .......................................................a definir
Nº de série ......................................................
Número de fases ............................................. 3
Tensão primária .............................................. 13.800V
Tensão secundária................................... 380/220V
Freqüência ...................................................... 60 Hz
Resfriamento ................................................... ONAN
Potência Nominal ............................................ 75 kVAR
Ligações:
Primário ........................................................... Triângulo
Secundário ...................................................... Estrela aterrado
Nível Básico de Isolamento:
Primário ........................................................... 110kV
Secundário ...................................................... 4kV
•
•
•
•Secionador Fusível (Secionamento do TSA)
a) Descrição
Os secionadores fusíveis serão instados na posição vertical, utilizando-se das
vigas de conMCBto armado da estrutura do barramento de 15kV e serão
operados manualmente por vara-de-manobra. O isolamento fase-terra é feito
por um único isolador tipo NEMA TR-4. Cada secionador será ainda dotado
de conectores de linha e de aterramento.
b) Características Elétricas
Fabricante ...........................................................a definir
Tipo .....................................................................
Tensão nominal ................................................... 24 kV
Corrente nominal ................................................. 100 A
TÍTULO: SE UFC CAMPUS DO PICI – SE Nova 72,5/15kV
DATA: 27/06/2011
ELABORAÇÃO: João Victor da Costa Vale PÁGINA: 16/19
Corrente mínima de interrupção simétrica .......... 6,3 kA
Corrente mínima de interrupção assimétrica .. 9 kA
•
•
•
•Quadro de serviços auxiliares CA
a) Descrição
O quadro de serviços auxiliares, instalado na sala de comando é do tipo
SIMPLEX padrão, composto por 1 (um) painel. Na parte frontal estão
montados os instrumentos indicadores, chaves comutadoras para
instrumentos, lâmpadas de sinalização e disjuntores termo-magnético dos
circuitos de serviços auxiliares CA.
O acesso ao interior do quadro se faz por portas localizadas na parte posterior
do mesmo, enquanto o acesso dos cabos se faz pela parte inferior até
alcançar a régua de bornes terminal. A fiação interna se ramifica no interior
dos painéis em calhas plásticas realizando as ligações entre equipamentos,
instrumentos e régua de bornes.
Abriga os equipamentos de controle e medição dos serviços auxiliares de
corrente alternada.
•
•
•
•Bateria de Acumuladores
a) Descrição
A bateria de acumuladores é do tipo estacionária, chumbo-ácido, com
fornecimento conforme Especificação Técnica ET. 191.
Cada um dos elementos da bateria compõem-se de placas positiva e negativa
imersas em eletrólito ácido, acondicionadas em recipiente plástico com pólos
acessíveis. Os mesmos são dotados de chapas conectores, válvula à prova
de explosão para dissipação de gases e válvula lateral para medição da
densidade do eletrólito e temperatura das placas.
TÍTULO: SE UFC CAMPUS DO PICI – SE Nova 72,5/15kV
DATA: 27/06/2011
ELABORAÇÃO: João Victor da Costa Vale PÁGINA: 17/19
A bateria será instalada em sala especial da Casa de Comando, com seus
elementos acomodados numa estante metálica, interligados, de forma a
prover o sistema CC com uma tensão nominal de 125 Vcc.
Em condições normais de operação, a bateria estará em regime de flutuação,
isto é, conectada ao circuito do retificador CA-CC.
b) Características Elétricas
Fabricante........................................................a definir
Tipo..................................................................a definir
Tensão Nominal .............................................. 125 Vcc
Capacidade de descarga (10 h) ...................... 100 A.h
Tensão final de descarga por elemento .......... 1,21 Vcc
Número de elementos ..................................... 60
Eletrólito........................................................... Solução de
Ácido-sulfúrico
•
•
•
•Retificador tipo “A”
a) Descrição
O carregador-retificador será acoplado ao circuito de corrente contínua em
paralelo com a bateria. O mesmo abriga todos os equipamentos de
transformação e retificação de tensão, além dos de proteção, medição,
controle e sinalização, estes com instalação aparente, na parte frontal do
painel do retificador. Possuirá em seu gabinete um barramento de distribuição
com trinta disjuntores termomagnéticos bipolares de 20 A para alimentação
dos circuitos de serviços auxiliares CC.
b) Características Elétricas
Fabricante........................................................ a definir
TÍTULO: SE UFC CAMPUS DO PICI – SE Nova 72,5/15kV
DATA: 27/06/2011
ELABORAÇÃO: João Victor da Costa Vale PÁGINA: 18/19
Tipo.................................................................. a definir
Número de fases.............................................. 03
Tensão nominal de entrada(eficaz) ................. 380 Vca/60 Hz
Tensão nominal de saída ................................ 125 Vcc
Freqüência ...................................................... 60 Hz
Configuração (25 Acc + 25 Acc) ..................... 1+1
Capacidade nominal em corrente continua ..... 25 A
Rendimento mínimo ........................................ 85%
Ruído (ripple) em operação com bateria
conectada ........................................................ 3%
Regulação estática na voltagem de saída (0 à 100%
da carga)......................................................... . 3%
Fator de potencia indutivo acima de ............... 0,92
6. DOCUMENTOS DE REFERÊNCIA DO PROJETO
6.1Especificação Técnica
E-SE-0001 – Transformador de Potência
E-SE-0002 – Disjuntor 72,5 kV
E-SE-0003 - Disjuntor 15 kV
E-SE-0004 - Secionadores de alta Tensão
E-SE-0005 - Transformador de Corrente e de Potencial
E-SE-0006 - Secionadores de Média Tensão
E-SE-0007 - Transformadores de medidas
E-SE-0009 – Banco de Capacitores
E-MT-008 – Reguladores de tensão
E-MT-009 - Transformadores de distribuição
ET-145 – Religadores
ET-155 – Para-raios estação
001/1999 - Secionador Fusível
4.13Padrões
PS-051.01 – Padrões de Subestações;
TÍTULO: SE UFC CAMPUS DO PICI – SE Nova 72,5/15kV
DATA: 27/06/2011
ELABORAÇÃO: João Victor da Costa Vale PÁGINA: 19/19
PS-052.01 – Padrões de Detalhes e Montagem;
PM-01– Padrão de Materiais;
Elaboração
APÊNDICE B
(ORÇAMENTO DA SE 69/13,8 KV UFC – CAMPUS DO
PICI)
Data Impressão: 20/05/2011 15:08:57
: CONSTRUÇÃO DE NOVA SUBESTAÇÃO CAMPUS DO PICI
: JOÃO VICTOR DA COSTA VALE
:
: PD PADRAO
: 20/05/2011
:
: CONSTRUÇÃO DE NOVA SUBESTAÇÃO CAMPUS DO PICI
Solicitação :
Total (A) : R$ 1.458.592,38
Total (B) : R$ 598.559,72
Total (C) : R$ 150.219,13
Custo Global da Obra : R$ 2.207.371,23
Técnico Responsável
Dep. Elaborador
ORÇAMENTO DE MATERIAIS E SERVIÇOS
Orçamento
Dados Gerais do Orçamento
Trabalho
Projeto
Tipo Preço
Data Base
Código Descrição U. Med Qtde Pr. Unit Pr. Total
90001 CABEÇOTE,BAQ;ELET/CXMED;1POL UN 12,00 4,83 57,96
90002 CABEÇOTE,BAQ;ELET/CXMED;2POL UN 1,00 6,04 6,04
90004 CONEC,MACHO-FIXO;LATÃO;1,1/2 UN 17,00 15,94 270,96
90005 CONEC,MACHO-FIXO;LATÃO;2 UN 10,00 26,45 264,50
90007 ELET,MET;FLX;PVC;1,1/2;D64150 UN 7,00 9,1 63,72
90008 ELET,MET;FLX;PVC;2;D64150 UN 3,00 15,58 46,75
90009 UNIÃO,MACHO-FÊMEA;AZ;1 UN 7,00 7,19 50,35
90010 UNIÃO,MACHO-FÊMEA;AZ;1,1/2 UN 14,00 19,69 275,63
90011 UNIÃO,MACHO-FÊMEA;AZ;2 UN 6,00 29,7 178,23
90012 REGUA,BORN;T,BAQ;600V;5P;150A UN 1,00 15,05 15,05
90015 ABRAC,GRAMP;U;AZ;35X90MM;COMP UN 2,00 2,42 4,83
90016 BUJÃO,SELADOR;PVC;ROSCA 3/4 UN 30,00 4,23 126,95
90017 BUJÃO,SELADOR;PVC;ROSCA1 UN 10,00 4,83 48,30
90018 CORDOALHA,CU ESTANHADO;350MM UN 2,00 6,28 12,56
90020 REGUA,BORN;T,BAQ;600V;12P;15A UN 5,00 25,71 128,57
90021 LUVA,REDUÇ;ELETPVC;2X/1,1/2 UN 2,00 0,56 1,11
90022 CAIXA,DRV;AL;T;2;D64102 UN 1,00 12,76 12,76
90033 ISOL,EPOXI UN 2,00 1,58 3,15
90035 TRILHO,OHMEGA;PARA CONTACTOR M 1,00 3,99 3,99
90036 REGUA,BORNES;SAQUE;70MM2 UN 6,00 15,75 94,50
90037 CHAPA,COBRE;PARABARRAMENTO UN 1,00 31,5 31,50
90038 POSTE,K2 UN 2,00 2,1 4,20
90039 TAMPA,PARACONECTOR SAK UN 1,00 1,58 1,58
4543476 PO,SOLDA EXOT;CART 90G;D82040 UN 142,00 2,67 379,14
4543477 PO,SOLDA EXOT;CART 115G;D82040 UN 16,00 3,33 53,26
4543871 CONECTOR,T;CAA 477MCM;TR/DR;D- UN 30,00 45,68 1.370,40
4543915 CONEC,TER;RET;2F;A/C;6-750 UN 72,00 77,72 5.595,91
4544022 TOMADA,BLIND;RED;20A;500V;3POL UN 2,00 35,47 70,94
4544024 TOMADA,BLIND;RED;20A;500V;4POL UN 2,00 56,39 112,77
4544141 SEC,3P;72,5-1250-MTACHA;ESE004 UN 1,00 23.363,55 23.363,55
4544185 TRAFO,POT;C1;5/6,25;ESE001 UN 1,00 510.944,23 510.944,23
4544198 TP;13,8KV-115V;0,6P200;2000VA UN 3,00 3.318,38 9.955,13
4544199 BAT,EST;PB-AC;SEL;100;C;ET191 UN 1,00 5.389,69 5.389,69
4544265 LAMPADA,INCAND;100W;130VCC;PAD UN 10,00 1,11 11,13
4544341 SISTEMA,DIGIT;TIPO 3;E-PCM-008 UN 1,00 358.974,36 358.974,36
4552753 RETIF;B;380VCA/125VCC;25+25A UN 1,00 25.912,06 25.912,06
4565771 CABO,AL NU;A6201;315MM2;ELT001 KG 100,00 16,01 1.601,00
6770190 ALCA,DIST,266CAA/160CAL,D73002 UN 9,00 9,15 82,31
6770242 SEC,PREF;CERC;3,25-4,11;D75001 UN 120,00 1,43 171,36
6770255 ALCA,PREF;DIST;CU-NU120;D73001 UN 12,00 46,79 561,46
6770305 PARAF,CB QUAD;AZ;16X200;D41010 UN 32,00 2,89 92,40
6770306 PARAF,CB QUAD;AZ;16X250;D41010 UN 91,00 4,2 382,20
6770307 PARAF,CB QUAD;AZ;16X300;D41010 UN 101,00 4,88 493,13
6770308 PARAF,CB QUAD;AZ;16X350;D41010 UN 10,00 5,06 50,60
6770309 PARAF,CB QUAD;AZ;16X400;D41010 UN 40,00 6,8 272,05
6770310 PARAF,CB QUAD;AZ;16X450;D41010 UN 16,00 7,31 116,93
6770333 PARAF,CB QUAD;AZ;20X400;D41009 UN 29,00 11,95 346,54
6770350 PARAF,CB QUAD;AZ;12X250;D41011 UN 68,00 2,81 191,35
6770353 PARAF,CB QUAD;AZ;12X400;D41011 UN 6,00 2,92 17,51
6770560 PARAFUSO,CAB QUAD;CAZ;10X50;D- UN 20,00 1,31 26,25
6770594 PARAF,AUTO-ATAR;4,8X50;D41032 UN 180,00 0,06 11,34
6770597 PARAF,ROSC DP;AZ;16X400;D41028 UN 36,00 9,47 340,96
6770602 PARAF,ROSC DP;AZ;12X400;D41029 UN 6,00 9,28 55,69
6770615 BUCHA,NYLON;N-8;P/PARAF;4,8X50 UN 180,00 0,22 39,69
6770618 OLHAL,PARAF M16;AZ;D41005 UN 21,00 7,16 150,38
6770619 OLHAL,PARAF M20;ACO ZN;12000DA UN 9,00 27,07 243,62
6770623 PORCA,QUAD;CAZ;M12X1,50;D-4100 UN 54,00 0,24 13,04
6770626 PORCA,SEXT;CAZ;M16X2;D-41006 UN 76,00 0,42 31,92
6770631 ARRUELA,QUA;AZ; 50X5X22;D41003 UN 49,00 0,97 47,49
6770632 ARRUELA,QUA;AZ; 50X3X18;D41003 UN 318,00 0,5 159,97
6770633 ARRUELA,QUA;AZ; 38X3X14;D41003 UN 60,00 0,15 8,82
6770637 ARRUELA,PRESS;18X3X13,5;D41002 UN 30,00 0,55 16,38
6770638 ARRUELA,PRESS;24X4X17,5;D41002 UN 313,00 0,57 177,47
6770639 ARRUELA,PRESS;28X4X22;D41002 UN 9,00 0,59 5,29
6770644 ARRUELA,RED;AZ;22X2X12;D41001 UN 40,00 0,19 7,56
6770645 ARRUELA,RED;AZ;28X3X14;D41001 UN 106,00 0,19 20,03
6770646 ARRUELA,RED;AZ;36X3X18;D41001 UN 398,00 0,28 112,83
6770647 ARRUELA,RED;AZ;44X5X22;D41001 UN 9,00 0,95 8,51
6770653 ARRUELA,SEXT;FE NOD;ELET 1,1/2 UN 21,00 3,26 68,46
6770654 ARRUELA,SEXT;FE NOD;ELET 2 UN 8,00 5,81 46,45
6770677 POSTE,CONC;DT; 600/ 4,5M;ET300 UN 13,00 221,98 2.885,74
6770686 POSTE,CONC;DT; 300/ 9M;ET300 UN 11,00 436,91 4.805,96
6770709 POSTE,CONC;DT;1000/12M;ET300 UN 2,00 1.250,04 2.500,08
6770738 SUPORTE,CAPITEL;B-1;TC/TP;72,5 UN 8,00 97,47 779,76
6770765 SUPORTE,JAB;DUP;L;1630;D31031 UN 4,00 145,72 582,88
6770766 SUPORTE,JAB;DP;LT730B3;D31032 UN 6,00 131,62 789,72
6770768 VIGA,CON;120X170X3480;D31003 UN 6,00 184,88 1.109,28
6770772 VIGA,CON;120X170X4600;V;D31007 UN 4,00 243,36 973,44
6770776 VIGA,CON;120X170X3100;D31004 UN 18,00 165,98 2.987,64
6770782 ANEL,CONC;TRIPLO;B-3;D31021 UN 19,00 81 1.539,00
6770783 ANEL,CONC;TRIPLO;B-6;D31021 UN 25,00 81 2.025,00
6770785 VIGA,CON;230X310X7100;D31005 UN 11,00 445,24 4.897,64
6770799 POSTE,CONC;DT;1000/10,5M;ET300 UN 17,00 1.000,39 17.006,63
RELAÇÃO DE MATERIAIS
6770856 CONEC,T;CU;240-300TR;95-120D UN 9,00 151,75 1.365,75
6770857 CONEC,TER;RET;4F;A/C;6-750 UN 36,00 86,29 3.106,40
6770896 CONEC,T;CU;240-300TR/DR;D71015 UN 27,00 145,98 3.941,46
6770898 CONEC,FEND;CU;35-70TR;16-70DR UN 203,00 11,5 2.334,13
6770899 CONEC,FEND;CU;50-185TR;ET710 UN 3,00 9,04 27,12
6770903 CONEC,T;CU; 95-120TR/DR;ET710 UN 27,00 97,55 2.633,85
6770940 CONEC,SUP;AL;266/160;TB3/8-1/2 UN 6,00 65,08 390,47
6770946 CONECTOR,SUPORTE;CU 120-500;D- UN 48,00 84,54 4.057,81
6770949 CONEC,ATERR;CU;16-70;D71025 UN 131,00 15,57 2.039,87
6770964 GRAMPO,ANC;TERM;CU 120-240;D-7 UN 9,00 163,8 1.474,20
6770968 CONCHILHA,AZ;8000DAN;D51012 UN 9,00 14,56 131,07
6770972 GANCHO BOLA;AZ;12000DAN;D51019 UN 9,00 15,25 137,21
6770976 MANILHA,SAPAT;AZ;5000D;D51003 UN 12,00 6,28 75,35
6770977 MANILHA,AZ;16MM;12000;D51011 UN 30,00 20,69 620,55
6771008 PÁRA-RAIO,ESTAÇÃO;C1;60KV;E155 UN 6,00 6.362,54 38.175,23
6771010 PARA-RAIO,ESTAÇÃO;C2;12KV;E155 UN 3,00 499,72 1.499,15
6771012 HASTE,PR;50X6X4500MM;D15710 UN 15,00 201,32 3.019,75
6771023 BASE,RELE FOTOELETRICO;D60402 UN 11,00 6,92 76,11
6771027 BRACO,AZ;LUM;250/400W;2500MM UN 22,00 34,17 751,67
6771031 RELIG,15KV;560A;16KA;SR;EMT004 UN 3,00 36.540,78 109.622,34
6771038 CAIXA,DRV;AL;T;1,1/2;D64102 UN 3,00 12,44 37,33
6771039 CAIXA,DRV;AL;LL;1,1/2;D64102 UN 2,00 12,97 25,94
6771040 CAIXA,LIG;RET;AL;TP/TC;D64105 UN 3,00 243,14 729,41
6771067 ISOL,C 6;DISC;VD;SE;D175;ET500 UN 63,00 24,12 1.519,47
6771068 ISOL,C 8;DISC;VID;E280;ET500 UN 54,00 70,13 3.786,99
6771074 ISOL,C10;PED;PORC;15KV;ET500 UN 24,00 142,07 3.409,56
6771169 DISJ,TM;3P;100A;380V/5KA;EBT04 UN 1,00 149,86 149,86
6771172 DISJ,TM;3P;150A;380V/10KA;EBT4 UN 1,00 208,41 208,41
6771181 DISJ,72,5KV-25KA;1250A;ESE002 UN 1,00 59.314,50 59.314,50
6771190 ELET,PVC; 3/4;VARA 3M;D65101 UN 20,00 3,92 78,33
6771191 ELET,PVC;1;VARA3M;D65101 UN 42,00 4,78 200,66
6771192 ELET,PVC;1,1/2;VARA3M;D65101 UN 22,00 10,05 221,10
6771193 ELET,PVC;2;VARA3M;D65101 UN 9,00 16,59 149,31
6771199 LUVA,ELET PVC RIG; 3/4;D65102 UN 30,00 0,54 16,07
6771200 LUVA,ELETPVC RIG;1;D65102 UN 72,00 0,51 37,04
6771201 LUVA,ELET PVC RIG;1,1/2;D65102 UN 50,00 1,46 73,00
6771202 LUVA,ELETPVC RIG;2;D65102 UN 22,00 1,96 43,20
6771208 CURVA,90;ELETPVC 3/4;D65103 UN 10,00 1,29 12,92
6771209 CURVA,90;ELETPVC 1;D65103 UN 19,00 1,44 27,33
6771210 CURVA,90;ELETPVC 1,1/2;D65103 UN 25,00 2,04 51,00
6771211 CURVA,90;ELETPVC 2;D65103 UN 13,00 3,79 49,28
6771302 DISJ,TM;3P; 10A;380V/5A;FP UN 1,00 43,4 43,40
6771313 HASTE,ATER;CIRC;13X2000;D80001 UN 12,00 29,02 348,26
6771314 HASTE,ATER;CIRC;17X3000;D80003 UN 4,00 59,77 239,06
6771341 PARA-RAIO,C3;12KV;110KV;ET155 UN 18,00 148,84 2.679,08
6771384 BUCHA,BAQ;SEXT;ELET 1;D64125 UN 22,00 3,27 71,84
6771385 BUCHA,BAQ;SEXT;ELET 1,1/2 UN 21,00 5,74 120,54
6771386 BUCHA,BAQ;SEXT;ELET2;D64125 UN 8,00 5,85 46,79
6771462 SEC,3P;72,5-1250-MACHB;ESE004 UN 1,00 19.194,00 19.194,00
6771473 SEC,3P;15-630-MALHA;C1;ESE006 UN 3,00 6.935,31 20.805,94
6771478 SEC,1P;15-630-MAVVA;C7;ESE006 UN 21,00 684,06 14.365,35
6771499 CABO,CU NU;120MM2;MD;D21001 KG 45,00 30,17 1.357,65
6771504 CABO,CU NU; 70MM2;MD;EMT003 KG 1,40 30,17 42,24
6771511 CABO,CU NU;240MM2;MD;D21001 KG 300,00 30,17 9.051,00
6771522 CABO,ACO-CU;ATERR;7X10;D80502 KG 36,00 29,88 1.075,79
6771562 CABO,CU ISOL;XLPE;120MM2 M 4,00 22,43 89,71
6771574 CABO,CU BLIN;CONT; 2X4;ET206 M 150,00 17,39 2.608,50
6771575 CABO,CU BLIN;CONT; 4X4;ET206 M 150,00 23,7 3.555,00
6771623 TRAFO,3F; 75KVA;14,4;EMT009 UN 1,00 6.008,40 6.008,40
6771684 TC,EXT;C1;72,6KV;200/,,1200-5- UN 3,00 16.961,96 50.885,89
6771685 TC,EXT;C3;15KV;150/,,,/800-5-5 UN 3,00 1.937,33 5.812,00
6771730 LUM,FECH;AL;LAMP INCAND;100W;1 UN 10,00 40,78 407,82
6771762 REATOR,AZ;NA;150W;IG;EX;D60103 UN 22,00 38,7 851,47
6771773 LAMP,NA;150W;TUB;E40;D60603 UN 22,00 11,34 249,48
6771829 CANTON,L;AZ; 40X5X250;D43521 UN 22,00 10,54 231,92
6771837 CANTON,U;AZ; 50X310X430;D43531 UN 16,00 42,18 674,86
6771845 CANTON,L;AZ;75X10X450;D43525 UN 12,00 50,34 604,04
6771856 CHAPA,FIX;AZ;450X60X12;D43550 UN 2,00 26,6 53,19
6771896 ABRAC,UNHA; 20(1/2);D65520 UN 65,00 0,78 50,51
6771897 ABRAC,UNHA; 25(3/4);D65520 UN 20,00 1,79 35,70
6771901 ABRAC,UNHA; 32(1);D65520 UN 46,00 2,42 111,09
6771902 ABRAC,UNHA; 50(1,1/2);D65520 UN 14,00 2,59 36,31
6771903 ABRAC,UNHA; 60(2);D65520 UN 7,00 4,62 32,34
6771910 CHAPA,CURVA;22MM;ATERR;D80020 UN 9,00 6,98 62,84
6771911 CHAPA,CURVA;18MM;ATERR;D80020 UN 21,00 6,65 139,58
6771912 CHAPA,CURVA;14MM;ATERR;D80020 UN 35,00 6,33 221,60
6773731 CONEC,ATERR;CU;70-120;ET-710 UN 1,00 15,57 15,57
6773976 DISJ,15KV;C1; 630A;16KA;S/R UN 1,00 52.682,18 52.682,18
6775610 CHAVE,FUS;24KV;C;400A;VG;13502 UN 3,00 131,38 394,13
6775622 CAIXA,LIG;RET;AL;TSA;D64105 UN 2,00 223,09 446,19
6778563 CABO,ACO-CU;ATERR;7X 7;D80502 KG 270,96 27,6 7.479,72
6781312 LUM,FECH;IP2;150W;EQ,IN;D60050 UN 22,00 176,38 3.880,34
6782788 CABO,ACO-CU;ATERR;7X 6;D80502 KG 303,38 27,6 8.373,30
6783547 ISOL,SUP;C17;72,5KV;D260;ET500 UN 6,00 700,31 4.201,85
6787719 RELE,RFO;220V;1000W;S/B;D60401 UN 11,00 12,63 138,95
6791523 CONEC,SUP;LIG AL;120-315;ET710 UN 6,00 84,54 507,24
TOTAL (A) 1.458.592,38
Código Descrição Qtde Pr. Unit Pr. Total
99040101 OBRA SE;FINCAMENTO OU ARRANCAMENTO POSTE ATÉ 14M;EXCETO ROCHA 43,00 635,92 27.344,56
99040103 OBRA SE;INSTALAÇÃO OU DESATIV DE ANÉIS OU SUPORTES (JABAQUARA OU CAPITEIS) 62,00 141,13 8.750,06
99040104 OBRA SE;INSTALAÇÃO OU DESATIVAÇÃO DE VIGAS E CRUZETAS 39,00 89,75 3.500,25
99040201 OBRA SE;LANÇAMENTO E NIVELAMENTO DE CABO DE COBRE OU ALUMÍNIO NÚ 415,00 28,22 11.711,30
99040203 OBRA SE;ILANÇAMENTO OU DESATIVAÇÃO DE CONDUTOR ISOLADO ATÉ 1000 V 300,00 2,25 675,00
99040301 OBRA SE;INST OU RETIR TRAFO DE POT ATÉ 7,5 MVA OU REGULADOR DE TENSÃO TRIF 1,00 16.800,00 16.800,00
99040303 OBRA SE;INST OU RETIR DE TSA;CONJ DE MED;TRAFO POTEN OU CORRENTE;PR 72,5 13,00 290,18 3.772,34
99040304 OBRA SE;INST OU RETIR DE PARA-RAIO 72,5 KV 1,00 133,71 133,71
99040305 OBRA SE;INST OU RETIR DE PR ESTACAO;TIPO DISTRIB 15K;CHAVE ÓLEO UNIP 15KV 6,00 29,79 178,74
99040307 OBRA SE;INST OU RETIR DE DJ 15;RELIG;CH OLEO 3P;REG M 4,00 881,87 3.527,48
99040308 OBRA SE;INST OU RETIR DE SECIONADOR TRIPOLAR 72,5KV 2,00 3.203,42 6.406,84
99040309 OBRA SE;INST OU RETIR DE SECIONADOR TRIPOLAR 15 KV 4,00 2.136,36 8.545,44
99040310 OBRA SE;INST OU RETIR DE SEC UNIP;SEC FUS;CH TANDEM 27,00 70,00 1.890,00
99040312 OBRA SE;INST OU RETIR DE BANCO DE BATERIA 1,00 433,59 433,59
99040313 OBRA SE;INST OU RETIR DE RETIF 3F OU QUADRO COMANDO/PROTECAO (1PAINEL) 1,00 395,19 395,19
99040316 OBRA SE;INST OU RETIR DE LUMINÁRIAS OU TOMADAS 36,00 11,84 426,24
99040402 OBRA SE;ATER/BLIND;LANÇ CABO ATERR AÉREO NU/ISOL 800,00 23,70 18.960,00
99040405 OBRA SE;ATER/BLIND;INSTAL/RETIR HASTE PARA-RAIO 15,00 70,00 1.050,00
99040403 OBRA SE;ATER/BLIND;CRAVAMENTO HASTES NORMAIS 4,00 27,09 108,36
99040406 OBRA SE;ATER/BLIND;EXECUÇÃO DE SOLDA EXOTÉRMICA 142,00 18,94 2.689,48
99040501 OBRA SE;ACESSORIOS;OBRA SE;INST OU RETIR DE CADEIA ISOLADORES 54,00 19,81 1.069,74
99040701 OBRA SE;LANÇAMENTO ELETRODUTOS VERTICAIS 273,00 3,39 925,47
99040801 OBRA SE;INTERLIG DE DISJUNTOR 72,5/15;RELIG;BANCO DE CAPAC;TRAFO POT;RETIF 7,00 208,89 1.462,23
99040802 OBRA SE;INTERLIG DE TP;TC;TSA;PONTO DE CONEX TRIFASICA 5,00 70,00 350,00
99040803 OBRA SE;INTERLIG QUAD COM/PROT DJ 72,5;QUAD COM/CONT SERV AUX 1P RETIF QCC 2,00 835,80 1.671,60
99040805 OBRA SE;INST OU INTERLIG CAIXA LIG TP E TC 72,5KV E 15 KV 4,00 302,60 1.210,40
MO1 SERVIÇOS DE OBRAS CIVIS 27.857,00 14,00 389.998,00
07010201 SE PEQUENO PORTE - PROJETO 1,00 42.000,00 42.000,00
07010202 SE PEQUENO PORTE -FISCALIZAÇÃO 1,00 21.000,00 21.000,00
07010203 SE PEQUENO PORTE -COMISSIONAMENTO 1,00 25.200,00 25.200,00
TOTAL (B) 598.559,72
ADM 0,00
ENG 148.611,13
TRA 1.608,00
TOTAL (C) 150.219,13
ADMINISTRAÇÃO
ENG/SUP
TRANSPORTE
Mão-de-Obra
OUTROS GASTOS
APÊNDICE C
(PLANTAS DO PROJETO ELETROMECÂNICO DA SE
69/13,8 KV UFC – CAMPUS DO PICI)
ANEXO A
(DETALHES DE INSTALAÇÃO E MONTAGEM DE
EQUIPAMENTO E MATERIAIS 72,5 – 15 KV)
!  # $ %  ' ( ) % *
KS
130
150
200
250
Desenhista
Substitui Des. Nº
Verificado
Código / Página
Escala
Desenho Nº
Folha:
Aprovado
COELCE
Companhia Energética do Ceará
05/162
TRANSFORMADOR DE POTÊNCIA 69/13,8 kV
DETALHES DE INSTALAÇÃO E MONTAGEM
PS-052
S/E
052.01.0
2/2
PEDRO PAULO KEYLA
20 02 03 20 02 03
RELAÇÃO DE MATERIAL
REF UNID QUANTIDADE CÓDIGO ESTOQUE DESCRIÇÃO DO MATERIAL
C-3 KG 03 6771504 CABO CU NU 70mm² 19 FIOS MD DES-210.01
C-14 M 04 6771562 CABO, CU ISOL, XLPE, 0,6/1 kV, 120 mm
2
DES-204.03 (NOTA 1)
C-15 M 04 6771729 CABO, CU ISOL, XLPE, 0,6/1 kV, 240 mm
2
DES-204.03 (NOTA 1)
D-1 UM 01 6771193 ELETRODUTO PVC RIG ROSQ 2” 3 m DES-651.01
D-3 UM 02 6771191 ELETRODUTO PVC RIG ROSQ 1” 3 m DES-651.01
D-5 UMA 04 6771211 CURVA, 90GR, PVC RIG, ELET 2” DES-651.03
D-9 UMA 08 6771202 LUVA ELETRODUTO PVC RIG ROSQ 2” DES-651.02
D-11 UMA 01 6771200 LUVA ELETRODUTO PVC RIG ROSQ 1” DES-651.02
D-19 UMA 03 6771386 BUCHA, BAQ, SEXT, FIX ELET 2” DES-641.25
D-22 UMA 03 6770654 ARRUELA SEXT FE NODULAR ELET 2” DES-641.20
D-23 UMA 04 0090011 UNIÃO MACHO-FÊMEA AÇO ZINC ELET 2”
D-27 M 02 0090008 ELETRODUTO, MET, FLEX, PVC 2” DES- 641.50
D-29 UM 08 0090005 CONECTOR MACHO-FIXO, LATÃO ELET 2”
D-37 UM 01 0090001 CABEÇOTE, BAQ, ELET/CX MED, 1” DES-435.10
T-7 UM 04 4543476 PÓ, SOLDA, CARTUCHO 90 g DES-820.40
RELAÇÃO DE TRANSFORMADORES DE POTÊNCIA 69/13,8 kV
REF UNID QUANT E-SE-001 (TIPOS) CÓDIGO ESTOQUE DESCRIÇÃO DO EQUIPAMENTO
C1 4544185 TRANSFORMADOR POTÊNCIA, C1 5/6,25 MVA E-SE-001
C2 4544202 TRANSFORMADOR POTÊNCIA, C2 5/6,25/7,5 MVA E-SE-001
C3 4544204 TRANSFORMADOR POTÊNCIA, C3 10/12,5/15 MVA E-SE-001
E-1 UM 01
C4 4544186 TRANSFORMADOR POTÊNCIA, C4 20/26,6/33,2 MVA E-SE-001
RELAÇÃO DOS TC’s DE BUCHA DO TRANSFORMADOR
POTÊNCIA DO
TRANSFORMADOR
(MVA)
RELAÇÃO DO TC DE BUCHA DE
69 kV
CLASSE DE
EXATIDÃO DO TC
DE BUCHA
DE 69 kV
RELAÇÃO DO TC DE BUCHA DE
13,8 kV
CLASSE DE
EXATIDÃO DO TC
DE BUCHA DE
13,8 kV
IMPEDÃNCIA
PERCENTUAL
5/6,25
5/6,25/7,5
200/400/600/800-5 A 200/400/600/800-5 A
10/12,5/15 400/600/800/1200-5 A 400/600/800/1200-5 A
7 %
20/26,6/33,2 800/1200/1400/1600/1800/2000-5 A
10B400
600/800/1200/1400/1600/2000-5 A
10B400
13 %
Notas:
1- O cabo C-14 é utilizado nas subestações de pequeno porte, enquanto que o cabo C-15 é utilizado nas
subestações de grande porte.
!  # $ %  ' ( ) % *
Desenhista
Substitui Des. Nº
Verificado
Código / Página
Escala
Desenho Nº
Folha:
Aprovado
COELCE
Companhia Energética do Ceará
07/162
DISJUNTOR TRIPOLAR 72,5 kV
DETALHES DE INSTALAÇÃO E MONTAGEM
PS-052
S/E
052.02.0
2/2
PEDRO PAULO KEYLA
20 02 03 20 02 03
RELAÇÃO DE MATERIAL
REF UNID QUANTIDADE CÓDIGO ESTOQUE DESCRIÇÃO DO MATERIAL
C-3 KG 02 6771504 CABO CU NU 70mm² 19 FIOS MD DES-210.01
D-2 UM 02 6771192 ELETRODUTO PVC RIG ROSQ 1.1/2” 3m DES-651.01
D-6 UMA 03 6771210 CURVA, 90GR, PVC RIG, ELET 1.1/2” DES-651.03
D-10 UMA 06 6771201 LUVA ELETRODUTO PVC RIG ROSQ 1.1/2” DES-651.02
D-18 UMA 03 6771385 BUCHA, BAQ, SEXT, FIX ELET 1.1/2” DES-641.25
D-21 UMA 03 6770653 ARRUELA SEXT FE NODULAR ELET 1.1/2” DES-641.20
O-30 UM 06 6770857 CONECTOR TERM, RETO, 4F, AL/CU, 6-750 MCM DES-710.18
T-7 UM 01 4543476 PÓ, SOLDA, CARTUCHO 90 g DES-820.40
RELAÇÃO DOS DISJUNTORES TRIPOLAR DE 72,5 kV
REF UNID QUANT E-SE-002 (TIPOS) CÓDIGO ESTOQUE DESCRIÇÃO DO EQUIPAMENTO
E-2 C1 6771181 DISJUNTOR, 72,5 kV, C1, 1600 A, 20 kA E-SE-002
E-38
UM 01
C2 6771180 DISJUNTOR, 72,5 kV, C2, 2000 A, 31,5 kA E-SE-002
!  # $ %  ' ( ) % *
Desenhista
Substitui Des. Nº
Verificado
Código / Página
Escala
Desenho Nº
Folha:
Aprovado
COELCE
Companhia Energética do Ceará
12/162
TRANSFORMADORES DE CORRENTE 72,5 kV
DETALHES DE INSTALAÇÃO E MONTAGEM
PS-052
S/E
052.03.0
5/5
PEDRO PAULO KEYLA
20 02 03 20 02 03
RELAÇÃO DE MATERIAL
REF UNID QUANTIDADE CÓDIGO ESTOQUE DESCRIÇÃO DO MATERIAL
C-3 KG 06 6771504 CABO CU NU 70mm² 19 FIOS MD DES-210.01
D-2 UM 05 6771192 ELETRODUTO PVC RIG ROSQ 1.1/2” 3m DES-651.01
D-6 UMA 06 6771210 CURVA, 90GR, PVC RIG, ELET 1.1/2” DES-651.03
D-10 UMA 12 6771201 LUVA ELETRODUTO PVC RIG ROSQ 1.1/2” DES-651.02
D-16 UMA 01 6771040 CAIXA, LIG, RET, EQUIP TEMPO, LIGA AL, ITEM 1 DES-641.05
D-18 UMA 03 6771385 BUCHA , BAQ, SEXT, FIX ELET 1.1/2” DES-641.25
D-21 UMA 03 6770653 ARRUELA SEXT FE NODULAR ELET 1.1/2” DES-641.20
D-24 UMA 06 0090010 UNIÃO, MACHO-FÊMEA, AÇO ZINC, ELET 1.1/2”
D-28 M 03 0090007 ELETRODUTO, MET, FLEX, PVC, 1.1/2” DES-641.50
D-30 UM 03 0090004 CONECTOR, MACHO-FIXO, LATÃO, ELET 1.1/2”
F-2 UMA 12 6770632 ARRUELA QUAD, AÇO ZINC, 50x3x18mm DES-410.03
F-5 UMA 08 6770645 ARRUELA RED, AÇO ZINC, 28x3x14mm DES-410.01
F-6 UMA 12 6770646 ARRUELA RED, AÇO ZINC, 36x3x18mm DES-410.01
F-10 UMA 04 6771837 CANTONEIRA, AÇO ZINC, U-50x38x5x310x430mm DES-435.31
F-12 UMA 02 6771829 CANTONEIRA , AÇO ZINC, L-40x5x250mm DES-435.21
F-24 UM 12 6770307 PARAFUSO, CAB QUAD, AÇO ZINC, M16x300 DES-410.10
F-29 UM 04 6770350 PARAFUSO, CAB QUAD, AÇO ZINC, M12x250 DES-410.11
F-34 UM 06 6770594 PARAFUSO, AUTO-ATAR, CAB CIL, 4,8x50 DES-410.32
F-47 UM 04 6770560 PARAFUSO, CAB QUAD, AÇO ZINC, M10x50 DES-410.12
F-56 UMA 08 6770644 ARRUELA RED, AÇO ZINC, 22x2x12mm DES-410.01
L-12 UMA 02 0090020 RÉGUA , BORNES, TERM, BAQ, 12 POLOS 600V/15 A
L-15 UMA 06 6771902 ABRAÇADEIRA ,UNHA , 50 (1.1/2”) D10,5 DES-655.20
N-1 UMA 06 6770615 BUCHA, NYLON, S-8, P/PARAF 4,8x50 mm
O-12 UM 01 6770949 CONECTOR, ATERR, CU, 16-70mm
2
DES-710.25
O-13 UM 01 6770898 CONECTOR FEND, CU, 35-70mm
2
TR, 16-70mm
2
DR DES-710.35
O-30 UM 06 6770857 CONECTOR TERM, RETO, 4F, AL/CU, 6-750 MCM DES-710.18 (NOTA 1)
O-31 UM 06 4543915 CONECTOR TERM, RETO, 2F, AL/CU 6-750MCM DES-710.17 (NOTA 1)
T-3 UMA 01 6771912 CHAPA, CURVA, ATERR, CAZ, D=14 mm DES-800.20
T-7 UM 03 4543476 PÓ, SOLDA, CARTUCHO 90 g DES-820.40
RELAÇÃO DE TRANSFORMADORES DE CORRENTE 72,5 kV
REF UNID QUANT
E-SE-005
(TIPOS)
CÓDIGO ESTOQUE DESCRIÇÃO DO EQUIPAMENTO
E-8 C1 6771684 TC EXT, 72,5 kV, C1, 200/400/600x400/800/1200-5-5A E-SE-005 (NOTA 2)
E-39 C2 6771692 TC EXT, 72,5 kV, C2, 100/200/300x200/400/600-5A E-SE-005 (NOTA 2)
E-46
UM 03
C3 6775626 TC EXT, 72,5 kV, C3, 600/800/1000x1200/1600/2000-5A E-SE-005 (NOTA 2)
Notas:
1- Os conectores O-30 serão utilizados nos TC’s tipo C1, os O-31 nos TC’s tipo C2;
2- O TC tipo C1e C3 são utilizados para proteção e medição, o tipo C2 é utilizado para medição de
faturamento.
Desenhista
Substitui Des. Nº
Verificado
Código / Página
Escala
Desenho Nº
Folha:
Aprovado
COELCE
Companhia Energética do Ceará
17/162
TRANSFORMADORES DE POTENCIAL 72,5 kV
DETALHES DE INSTALAÇÃO E MONTAGEM
PS-052
S/E
052.04.0
5/5
PEDRO PAULO KEYLA
20 02 03 20 02 03
RELAÇÃO DE MATERIAL
REF UNID QUANTIDADE CÓDIGO ESTOQUE DESCRIÇÃO DO MATERIAL
C-3 KG 06 6771504 CABO CU NU 70mm² 19 FIOS MD DES-210.01
D-1 UM 01 6771193 ELETRODUTO PVC RIG ROSQ 2” 3m DES-651.01
D-2 UM 04 6771192 ELETRODUTO PVC RIG ROSQ 1.1/2” 3m DES-651.01
D-5 UMA 02 6771211 CURVA, 90GR, PVC RIG, ELET 2” DES-651.03
D-6 UMA 03 6771210 CURVA, 90GR, PVC RIG, ELET 1.1/2” DES-651.03
D-9 UMA 04 6771202 LUVA ELETRODUTO PVC RIG ROSQ 2” DES-651.02
D-10 UMA 06 6771201 LUVA ELETRODUTO PVC RIG ROSQ 1.1/2” DES-651.02
D-16 UMA 01 6771040 CAIXA, LIG, RET, EQUIP TEMPO, LIGA AL, ITEM 1 DES-641.05
D-19 UMA 02 6771386 BUCHA, BAQ, SEXT, FIX ELET 2” DES-641.25
D-22 UMA 02 6770654 ARRUELA SEXT FE NODULAR ELET 2” DES-641.20
D-24 UMA 06 0090010 UNIÃO, MACHO-FÊMEA, AÇO ZINC, ELET 1.1/2”
D-28 M 03 0090007 ELETRODUTO, MET, FLEX, PVC, 1.1/2” DES-641.50
D-30 UM 03 0090004 CONECTOR, MACHO-FIXO, LATÃO, ELET 1.1/2”
F-2 UMA 12 6770632 ARRUELA QUAD, AÇO ZINC, 50x3x18mm DES-410.03
F-5 UMA 08 6770645 ARRUELA RED, AÇO ZINC, 28x3x14mm DES-410.01
F-6 UMA 12 6770646 ARRUELA RED, AÇO ZINC, 36x3x18mm DES-410.01
F-10 UMA 04 6771837 CANTONEIRA, AÇO ZINC, U-50x38x5x310x430mm DES-435.31
F-12 UMA 02 6771829 CANTONEIRA, AÇO ZINC, L-40x5x250mm DES-435.21
F-24 UM 12 6770307 PARAFUSO, CAB QUAD, AÇO ZINC, M16x300 DES-410.10
F-29 UM 04 6770350 PARAFUSO, CAB QUAD, AÇO ZINC, M12x250 DES-410.11
F-34 UM 06 6770594 PARAFUSO, AUTO-ATAR, CAB CIL, 4,8x50 DES-410.32
F-47 UM 04 6770560 PARAFUSO, CAB QUAD, AÇO ZINC, M10x50 DES-410.12
F-56 UMA 08 6770644 ARRUELA RED, AÇO ZINC, 22x2x12mm DES-410.01
L-12 UMA 01 0090020 RÉGUA , BORNES, TERM, BAQ, 12 POLOS 600V/15 A
L-15 UMA 06 6771902 ABRAÇADEIRA ,UNHA , 50 (1.1/2”) D10,5 DES-655.20
N-1 UMA 06 6770615 BUCHA, NYLON, S-8, P/PARAF 4,8x50 mm
N-3 UM 01 6771302 DISJUNTOR, BT, 3P, 10 A, 380 V/ 5 kA, C/FIX
O-12 UM 01 6770949 CONECTOR, ATERR, CU, 16-70mm
2
DES-710.25
O-13 UM 01 6770898 CONECTOR FEND, CU, 35-70mm
2
TR, 16-70 mm
2
DR DES-710.35
O-31 UM 03 4543915 CONECTOR TERM, RETO, 2F, AL/CU 6-750MCM DES-710.17
T-3 UMA 01 6771912 CHAPA, CURVA, ATERR, CAZ, D=14 mm DES-800.20
T-7 UM 06 4543476 PÓ, SOLDA, CARTUCHO 90 g DES-820.40
RELAÇÃO DE TRANSFORMADORES DE POTENCIAL 72,5 kV
REF UNID QUANT E-SE-005 (TIPOS) CÓDIGO ESTOQUE DESCRIÇÃO DO EQUIPAMENTO
E-6 C4 6771665 TP EXT, 72,5 KV, C3, 69/1,73; 2x115-115/1,73 E-SE-005 (NOTA 1)
E-40
UM 03
C5 6771658 TP EXT, 72,5 KV, C4, 69/1,73; 1x115-115/1,73 E-SE-005 (NOTA 1)
Notas:
1- O TP tipo C3 é utilizado para proteção e medição, o tipo C4 é utilizado para medição de faturamento.
Desenhista
Substitui Des. Nº
Verificado
Código / Página
Escala
Desenho Nº
Folha:
Aprovado
COELCE
Companhia Energética do Ceará
20/162
PÁRA-RAIOS TIPO ESTAÇÃO – 72 kV
MONTAGEM VÃO EL/SL
DETALHES DE INSTALAÇÃO E MONTAGEM
PS-052
S/E
052.05.0
3/3
PEDRO PAULO KEYLA
20 02 03 20 02 03
RELAÇÃO DE MATERIAL
REF UNID QUANTIDADE CÓDIGO ESTOQUE DESCRIÇÃO DO MATERIAL
C-3 KG - 6771504 CABO CU NU 70mm² 19 FIOS MD DES-210.01
C-16 M 29 6771561 CABO, CU, ISOL, XLPE, 0,6/1kV, 70 mm DES-204.03
D-36 UMA 20 6771896 ABRAÇADEIRA UNHA 20(1/2”) D7 DES-655.20
F-6 UMA 24 6770646 ARRUELA RED, AÇO ZINC, 36x3x18mm DES-410.01
F-7 UMA 12 6770638 ARRUELA PRESS, AÇO ZINC, 24x4x17,5mm DES-410.02
F-26 UM 12 6770309 PARAFUSO, CAB QUAD, AÇO ZINC, M16x400 DES-410.10
F-34 UM 20 6770594 PARAFUSO, AUTO-ATAR, CAB CIL, 4,8x50 DES-410.32
F-63 UMA 06 6771845 CANTONEIRA, AÇO ZINC, L-75x10x450mm DES-435.25
N-1 UMA 20 6770615 BUCHA NYLON, S-8, P/PARAF 4,8x50 mm
T-7 UM 03 4543476 PÓ, SOLDA, CARTUCHO 90 g DES-820.40
RELAÇÃO DE PÁRA-RAIOS TIPO ESTAÇÂO – 72 kV MONTAGEM VÃO EL/SL
REF UNID QUANT ET-155 (TIPO) CÓDIGO ESTOQUE DESCRIÇÃO DO EQUIPAMENTO
E-7 UM 03 C1 6771008 PÁRA-RAIOS, ESTAÇÃO, 72 kV, C1, 10 kA ET-155
Desenhista
Substitui Des. Nº
Verificado
Código / Página
Escala
Desenho Nº
Folha:
Aprovado
COELCE
Companhia Energética do Ceará
23/162
PÁRA-RAIOS TIPO ESTAÇÃO – 72 kV
MONTAGEM VÃO TR
DETALHES DE INSTALAÇÃO E MONTAGEM
PS-052
S/E
052.06.0
3/3
PEDRO PAULO KEYLA
20 02 03 20 02 03
RELAÇÃO DE MATERIAL
REF UNID QUANTIDADE CÓDIGO ESTOQUE DESCRIÇÃO DO MATERIAL
C-3 KG - 6771504 CABO CU NU 70mm² 19 FIOS MD DES-210.01
C-16 M 39 6771561 CABO, CU, ISOL, XLPE, 0,6/1 kV, 70 mm DES-204.03
D-36 UMA 26 6771896 ABRAÇADEIRA UNHA 20(1/2”) D7 DES-655.20
F-6 UMA 24 6770646 ARRUELA RED, AÇO ZINC, 36x3x18mm DES-410.01
F-7 UMA 12 6770638 ARRUELA PRESS, AÇO ZINC, 24x4x17,5mm DES-410.02
F-24 UM 12 6770307 PARAFUSO, CAB QUAD, AÇO ZINC, M16x300 DES-410.10
F-34 UM 26 6770594 PARAFUSO, AUTO-ATAR, CAB CIL, 4,8x50 DES-410.32
F-63 UMA 06 6771845 CANTONEIRA, AÇO ZINC, L-75x10x450mm DES-435.25
N-1 UMA 26 6770615 BUCHA NYLON, S-8, P/PARAF 4,8x50 mm
T-7 UM 03 4543476 PÓ, SOLDA, CARTUCHO 90 g DES-820.40
RELAÇÃO DE PÁRA-RAIOS TIPO ESTAÇÃO – 72 kV MONTAGEM VÃO TR
REF UNID QUANT ET-155 (TIPO) CÓDIGO ESTOQUE DESCRIÇÃO DO EQUIPAMENTO
E-7 UM 03 C1 6771008 PÁRA-RAIOS, ESTAÇÃO, 72 kV, C1, 10 kA ET-155
!  # $ %  ' ( ) % *
!  # $ %  ' ( ) % *
Desenhista
Substitui Des. Nº
Verificado
Código / Página
Escala
Desenho Nº
Folha:
Aprovado
COELCE
Companhia Energética do Ceará
28/162
SECIONADOR TRIPOLAR – 72,5 kV
MONTAGEM HORIZ. ALTA, ABERTURA LATERAL,
C/LT
PS-052
S/E
052.07.0
5/5
PEDRO PAULO KEYLA
20 02 03 20 02 03
RELAÇÃO DE MATERIAL
REF UNID QUANTIDADE CÓDIGO ESTOQUE DESCRIÇÃO DO MATERIAL
C-3 KG 4,7 6771504 CABO CU NU 70mm² 19 FIOS MD DES-210.01
D-3 UM 01 6771191 ELETRODUTO PVC RIG ROSQ 1” DES-651.01
D-7 UMA 02 6771209 CURVA, 90GR, PVC RIG, ELET 1” DES-651.03
D-11 UMA 04 6771200 LUVA ELETRODUTO PVC RIG ROSQ 1” DES-651.02
D-25 UMA 02 0090009 UNIÃO, MACHO-FÊMEA, AÇO ZINC, ELET 1”
F-2 UMA 16 6770632 ARRUELA QUAD, AÇO ZINC, 50x3x18mm DES-410.03
F-6 UM 16 6770646 ARRUELA RED, AÇO ZINC, 36x3x18mm DES-410.01
F-7 UM 16 6770638 ARRUELA PRESS, AÇO ZINC, 24x4x17,5mm DES-410.02
F-46 UM 16 6770310 PARAFUSO, CAB QUAD, AÇO ZINC, M16x450 DES-410.10
O-12 UM 02 6770949 CONECTOR, ATERR, CU, 16-70mm
2
DES-710.25
O-13 UM 03 6770898 CONECTOR FEND, CU, 35-70mm
2
TR, 16-70mm
2
DR DES-710.35
O-30 UM 06 6770857 CONECTOR TERM, RETO, 4F, AL/CU, 6-750MCM DES-710.18
T-7 UM 07 4543476 PÓ, SOLDA, CARTUCHO 90 g DES-820.40
RELAÇÃO DE SECIONADORES TRIPOLAR – 72,5 kV MONTAGEM HORIZ. ALTA, ABERTURA LATERAL, C/LT
REF UNID QUANT E-SE-004 (TIPOS) CÓDIGO ESTOQUE DESCRIÇÃO DO EQUIPAMENTO
C1 4544141 SEC, TRIP, 72,5 kV, C1A, 1250 A, HLMACLT E-SE-004 (*)
E-3
C4 6771463 SEC, TRIP, 72,5 kV, C4A, 1250 A, HLMOCLT E-SE-004 (*)
C7 6771466 SEC, TRIP, 72,5 kV, C7A, 2000 A, HLMACLT E-SE-004 (*)
E-41
UMA 01
C9 6771470 SEC, TRIP, 72,5 kV, C9A, 2000 A, HLMOCLT E-SE-004 (*)
(*) LEGENDA:
C1A – Chave Tipo C1 Alta
C4A – Chave Tipo C4 Alta
C7A – Chave Tipo C7 Alta
C9A – Chave Tipo C9 Alta
HLMACLT – Montagem Horizontal Alta, Abertura Lateral, Manual, Com Lâmina de Terra
HLMOCLT – Montagem Horizontal Alta, Abertura Lateral, Motorizada, Com Lâmina de Terra
!  # $ %  ' ( ) % *
Desenhista
Substitui Des. Nº
Verificado
Código / Página
Escala
Desenho Nº
Folha:
Aprovado
COELCE
Companhia Energética do Ceará
43/162
SECIONADOR TRIPOLAR – 72,5 kV
MONTAGEM HORIZ. BAIXA, ABERTURA LATERAL,
S/LT
PS-052
S/E
052.10.0
5/5
PEDRO PAULO KEYLA
20 02 03 20 02 03
RELAÇÃO DE MATERIAL
REF UNID QUANTIDADE CÓDIGO ESTOQUE DESCRIÇÃO DO MATERIAL
C-3 KG 2,8 6771504 CABO CU NU 70mm² 19 FIOS MD DES-210.01
D-3 UM 01 6771191 ELETRODUTO PVC RIG ROSQ 1” DES-651.01
D-7 UMA 01 6771209 CURVA, 90GR, PVC RIG, ELET 1” DES-651.03
D-11 UMA 02 6771200 LUVA ELETRODUTO PVC RIG ROSQ 1” DES-651.02
D-25 UMA 02 0090009 UNIÃO, MACHO-FÊMEA, AÇO ZINC, ELET 1”
F-2 UMA 16 6770632 ARRUELA QUAD, AÇO ZINC, 50x3x18mm DES-410.03
F-6 UM 16 6770646 ARRUELA RED, AÇO ZINC, 36x3x18mm DES-410.01
F-7 UM 16 6770638 ARRUELA PRESS, AÇO ZINC, 24x4x17,5mm DES-410.02
F-24 UM 17 6770307 PARAFUSO, CAB QUAD, AÇO ZINC, M16x300 DES-410.10
O-12 UM 01 6770949 CONECTOR, ATERR, CU, 16-70mm
2
DES-710.25
O-13 UM 03 6770898 CONECTOR FEND, CU, 35-70mm
2
TR, 16-70mm
2
DR DES-710.35
O-30 UM 06 6770857 CONECTOR TERM, RETO, 4F, AL/CU, 6-750MCM DES-710.18
T-7 UM 02 4543476 PÓ, SOLDA, CARTUCHO 90 g DES-820.40
RELAÇÃO DE SECIONADORES TRIPOLAR – 72,5 kV MONTAGEM HORIZ. BAIXA, ABERTURA LATERAL, S/LT
REF UNID QUANT E-SE-004 (TIPOS) CÓDIGO ESTOQUE DESCRIÇÃO DO EQUIPAMENTO
C2 6771462 SEC, TRIP, 72,5 kV, C2B, 1250 A, HLMASLT E-SE-004 (*)
E-5 UMA 01
C8 6771468 SEC, TRIP, 72,5 kV, C8B, 2000 A, HLMASLT E-SE-004 (*)
(*) LEGENDA:
C2B – Chave Tipo C2 Baixa
C8B – Chave Tipo C8 Baixa
HLMASLT – Montagem Horizontal Baixa, Abertura Lateral, Sem Lâmina de Terra
Desenhista
Substitui Des. Nº
Verificado
Código / Página
Escala
Desenho Nº
Folha:
Aprovado
COELCE
Companhia Energética do Ceará
52/162
DISJUNTOR TRIPOLAR 15 kV COM TC´s
DETALHES DE INSTALAÇÃO E MONTAGEM
PS-052
S/E
052.13.0
2/2
PEDRO PAULO KEYLA
20 02 03 20 02 03
RELAÇÃO DE MATERIAL
REF UNID QUANTIDADE CÓDIGO ESTOQUE DESCRIÇÃO DO MATERIAL
C-3 KG 05 6771504 CABO CU NU 70mm² 19 FIOS MD DES-210.01
D-2 UM 03 6771192 ELETRODUTO PVC RIG ROSQ 1.1/2” 3m DES-651.01
D-6 UMA 03 6771210 CURVA, 90GR, PVC RIG, ELET 1.1/2” DES-651.03
D-10 UMA 06 6771201 LUVA ELETRODUTO PVC RIG ROSQ 1.1/2” DES-651.02
D-18 UMA 03 6771385 BUCHA, BAQ, SEXT, FIX ELET 1.1/2” DES-641.25
D-21 UMA 03 6770653 ARRUELA SEXT FE NODULAR ELET 1.1/2” DES-641.20
O-12 UM 04 6770949 CONECTOR, ATERR, CU, 16-70mm
2
DES-710.25
O-30 UM 06 6770857 CONECTOR TERM, RETO, 4F, AL/CU, 6-750 MCM DES-710.18 (NOTA 1)
O-31 UM 06 4543915 CONECTOR TERM, RETO, 2F, AL/CU, 6-750MCM DES-710.17 (NOTA 1)
T-7 UM 02 4543476 PÓ, SOLDA, CARTUCHO 90 g DES-820.40
RELAÇÃO DOS DISJUNTORES TRIPOLAR DE 15 kV COM TC´s
REF UNID QUANT E-SE-003 (TIPOS) CÓDIGO ESTOQUE DESCRIÇÃO DO EQUIPAMENTO
6771383 DISJUNTOR C1 SF6/VAC 15 kV 630 A 16 kA S/R E-SE-003
E-9
6773971 DISJUNTOR C1 SF6/VAC 15 kV 630 A 16 kA C/R E-SE-003
6771383 DISJUNTOR C1 SF6/VAC 15 kV 630 A 16 kA S/R B. CAP E-SE-003
E-22
C1
4544126 DISJUNTOR C1 SF6/VAC 15 kV 630 A 16 kA C/R B. CAP E-SE-003
6771339 DISJUNTOR C2 SF6/VAC 15 kV 1250 A 16 kA S/R E-SE-003
E-28 C2
6773977 DISJUNTOR C2 SF6/VAC 15 kV 1250 A 16 kA C/R E-SE-003
6771342 DISJUNTOR C3 SF6/VAC 15 kV 2000 A 16 kA S/R E-SE-003
E-37 C3
6773978 DISJUNTOR C3 SF6/VAC 15 kV 2000 A 16 kA C/R E-SE-003
E-42
UM 01
C4 4544078 DISJUNTOR C4 SF6/VAC 15 kV 2000 A 25 kA E-SE-003
RELAÇÃO DE TRANSFORMADORES DE CORRENTE 15 kV
DISJUNTORES (TIPOS) TC’s (TIPOS) CÓDIGO (TC’s) ESTOQUE DESCRIÇÃO DO EQUIPAMENTO
C1 (630 A, 16 kA) C3 6771685 TC EXTERNO C3 15 KV 150/400x300/800-5-5A E-SE-007
C2 (1250 A, 16 kA) C1 6771647 TC EXTERNO C1 15 KV 200/400/600x400/800/1200-5-5A E-SE-007
C3 (2000 A, 16 kA)
C4 (2000 A, 25 kA)
C4 6771687 TC EXTERNO C4 15 KV 600/800/1000x1200/1600/2000-5-5A E-SE-007
Notas:
1- O conectores O-31 serão utilizados nos disjuntores tipo C1, os O-30 nos disjuntores tipo C2, C3 e C4.
Desenhista
Substitui Des. Nº
Verificado
Código / Página
Escala
Desenho Nº
Folha:
Aprovado
COELCE
Companhia Energética do Ceará
54/162
RELIGADOR TRIFÁSICO 15 kV
DETALHES DE INSTALAÇÃO E MONTAGEM
PS-052
S/E
052.14.0
2/2
PEDRO PAULO KEYLA
20 02 03 20 02 03
RELAÇÃO DE MATERIAL
REF UNID QUANTIDADE CÓDIGO ESTOQUE DESCRIÇÃO DO MATERIAL
C-3 KG 0,4 6771504 CABO CU NU 70mm² 19 FIOS MD DES-210.01
D-2 UM 02 6771192 ELETRODUTO PVC RIG ROSQ 1.1/2” 3m DES-651.01
D-6 UMA 03 6771210 CURVA, 90GR, PVC RIG, ELET 1.1/2” DES-651.03
D-10 UMA 06 6771201 LUVA ELETRODUTO PVC RIG ROSQ 1.1/2” DES-651.02
D-18 UMA 03 6771385 BUCHA, BAQ, SEXT, FIX ELET 1.1/2” DES-641.25
D-21 UMA 03 6770653 ARRUELA SEXT FE NODULAR ELET 1.1/2” DES-641.20
T-7 UM 01 4543476 PÓ, SOLDA, CARTUCHO 90 g DES-820.40
RELAÇÃO DE RELIGADORES TRIFÁSICOS 15 kV
REF UNID QUANT E-MT-004 (TIPOS) CÓDIGO ESTOQUE DESCRIÇÃO DO EQUIPAMENTO
6771031 RELIGADOR, 15 kV, RCO1, 560 A, 16 kA, S/R E-MT-004
E-21 UM 01 RCO1
6771350 RELIGADOR, 15 kV, RCO1, 560 A, 16 kA, C/R E-MT-004
!  #$ %  ' ( ) % *
+,-./
Desenhista
Substitui Des. Nº
Verificado
Código / Página
Escala
Desenho Nº
Folha:
Aprovado
COELCE
Companhia Energética do Ceará
65/162
PÁRA-RAIOS TIPO ESTAÇÃO 15 kV
DETALHES DE INSTALAÇÃO E MONTAGEM
PS-052
S/E
052.17.0
3/3
PEDRO PAULO KEYLA
20 02 03 20 02 03
RELAÇÃO DE MATERIAL
REF UNID QUANTIDADE CÓDIGO ESTOQUE DESCRIÇÃO DO MATERIAL
C-3 KG - 6771504 CABO CU NU 70mm² 19 FIOS MD DES-210.01
C-16 M 25 6771561 CABO, CU, ISOL, XLPE, 0,6/1kV, 70mm² DES-204.03
D-36 UMA 19 6771896 ABRAÇADEIRA UNHA 20(1/2”) D7 DES-655.20
F-2 UMA 06 6770632 ARRUELA QUAD, AÇO ZINC, 50x3x18mm DES-410.03
F-5 UMA 06 6770645 ARRUELA RED, AÇO ZINC, 28x3x14mm DES-410.01
F-7 UM 06 6770638 ARRUELA PRESS, AÇO ZINC, 24x4x17,5mm DES-410.02
F-23 UM 06 6770306 PARAFUSO, CAB QUAD, AÇO ZINC, M16x250 DES-410.10
F-34 UM 19 6770594 PARAFUSO, AUTO-ATAR, CAB CIL, 4,8x50 DES-410.32
N-1 UMA 19 6770615 BUCHA NYLON, S-8, P/PARAF 4,8x50 mm
T-7 UM 03 4543476 PÓ, SOLDA, CARTUCHO 90 g DES-820.40
RELAÇÃO DE PÁRA-RAIOS TIPO ESTAÇÃO – 15 kV
REF UNID QUANT ET-155 (TIPO) CÓDIGO ESTOQUE DESCRIÇÃO DO EQUIPAMENTO
E-19 UM 03 C2 6771010 PÁRA-RAIOS, ESTAÇÃO, 15 kV, C2, 10 kA ET-155
Desenhista
Substitui Des. Nº
Verificado
Código / Página
Escala
Desenho Nº
Folha:
Aprovado
COELCE
Companhia Energética do Ceará
67/162
PÁRA-RAIOS TIPO DISTRIBUIÇÃO 15 kV
DETALHES DE INSTALAÇÃO E MONTAGEM
PS-052
S/E
052.18.0
2/2
PEDRO PAULO KEYLA
20 02 03 20 02 03
RELAÇÃO DE MATERIAL
REF UNID QUANTIDADE CÓDIGO ESTOQUE DESCRIÇÃO DO MATERIAL
C-3 KG 0,4 6771504 CABO CU NU 70mm² 19 FIOS MD DES-210.01
O-13 UM 03 6770898 CONECTOR FEND, CU, 35-70mm
2
TR, 16-70mm
2
DR DES-710.35
T-7 UM 02 4543476 PÓ, SOLDA, CARTUCHO 90 g DES-820.40
RELAÇÃO DE PÁRA-RAIOS TIPO DISTRIBUIÇÃO – 15 kV
REF UNID QUANT ET-155 (TIPO) CÓDIGO ESTOQUE DESCRIÇÃO DO EQUIPAMENTO
E-31 UM 03 C3 6771341 PÁRA-RAIOS; DIST; 15 kV; C3; 10 kA; 110 kV ET-155
!  # $ %  ' ( ) % *
!  # $ %  ' ( ) % *
Desenhista
Substitui Des. Nº
Verificado
Código / Página
Escala
Desenho Nº
Folha:
Aprovado
COELCE
Companhia Energética do Ceará
70/162
TRANSFORMADOR PARA SERVIÇOS AUXILIARES 75 kVA
DETALHES DE INSTALAÇÃO E MONTAGEM
PS-052
S/E
052.19.0
3/3
PEDRO PAULO KEYLA
20 02 03 20 02 03
RELAÇÃO DE MATERIAL
REF UNID QUANTIDADE CÓDIGO ESTOQUE DESCRIÇÃO DO MATERIAL
C-3 KG 2,5 6771504 CABO CU NU 70mm² 19 FIOS MD DES-210.01
D-1 UM 02 6771193 ELETRODUTO PVC RIG ROSQ 2” 3m DES-651.01
D-5 UMA 03 6771211 CURVA, 90GR, PVC RIG, ELET 2” DES-651.03
D-9 UMA 06 6771202 LUVA ELETRODUTO PVC RIG ROSQ 2” DES-651.02
D-19 UMA 02 6771386 BUCHA , BAQ, SEXT, FIX ELET 2” DES-641.25
D-22 UMA 02 6770654 ARRUELA SEXT FE NODULAR ELET 2” DES-641.20
D-38 UM 01 0090002 CABEÇOTE, BAQ, ELET/CX MED 2” DES-435.10
D-39 UMA 01 0090012 RÉGUA , BORNES, TERM, BAQ, 5 POLOS 600V/150 A
D-43 UMA 01 6775622 CAIXA LIG, RET, EQUIP TEMPO, LIGA AL , ITEM 2 DES-641.05
F-2 UMA 02 6770632 ARRUELA QUAD, AÇO ZINC, 50x3x18mm DES-410.03
F-5 UMA 08 6770645 ARRUELA RED, AÇO ZINC, 28x3x14mm DES-410.01
F-6 UMA 02 6770646 ARRUELA RED, AÇO ZINC, 36x3x18mm DES-410.01
F-7 UMA 02 6770638 ARRUELA PRESS, AÇO ZINC, 24x4x17,5mm DES-410.02
F-10 UMA 02 6771837 CANTONEIRA, AÇO ZINC, U-50x38x5x310x430mm DES-435.31
F-12 UMA 02 6771829 CANTONEIRA, AÇO ZINC, L, 40x5x250mm DES-435.21
F-22 UM 02 6770305 PARAFUSO, CAB QUAD, AÇO ZINC, M16x200 DES-410.10
F-29 UM 04 6770350 PARAFUSO, CAB QUAD, AÇO ZINC, M12x250 DES-410.11
F-34 UM 03 6770594 PARAFUSO, AUTO-ATAR, CAB CIL, 4,8x50 DES-410.32
F-47 UM 04 6770560 PARAFUSO, CAB QUAD, AÇO ZINC, M10x50 DES-410.12
F-56 UMA 08 6770644 ARRUELA RED, AÇO ZINC, 22x2x12mm DES-410.01
L-1 UMA 03 6771903 ABRAÇADEIRA, UNHA, 60 (2”), D10,5 DES-655.20
N-1 UMA 03 6770615 BUCHA, NYLON, S-8, P/PARAF 4,8x50 mm
N-4 UM 01 6771172 DISJUNTOR, BT, 3P, 150 A, 380 V /10 kA C/FIX
O-12 UM 01 6770949 CONECTOR, ATERR, CU, 16-70mm
2
DES-710.25
O-13 UM 01 6770898 CONECTOR FEND, CU, 35-70mm
2
TR, 16-70mm
2
DR DES-710.35
T-3 UMA 01 6771912 CHAPA, CURVA, ATERR, CAZ, D=14 mm DES-800.20
T-7 UM 01 4543476 PÓ, SOLDA, CARTUCHO 90 g DES-820.40
RELAÇÃO DE TRANSFORMADORES PARA SERVIÇOS AUXILIARES
REF UNID QUANT ET-101 (TIPO) CÓDIGO ESTOQUE DESCRIÇÃO DO EQUIPAMENTO
E-20 UM 01 C 6771623 TRANSFORMADOR, 3F, 75 kVA, 14,4/380-220 V ET-101 (OBS*)
OBS* : A RELAÇÃO DE TENSÃO COMPLETA DO TSA É 14,4/13,8/13,2 kV / 380-220 V.
!  # $ %  ' ( ) % *
Desenhista
Substitui Des. Nº
Verificado
Código / Página
Escala
Desenho Nº
Folha:
Aprovado
COELCE
Companhia Energética do Ceará
75/162
SECIONADOR TRIPOLAR 15 kV
MONTAGEM HORIZ. ALTA, ABERTURA LATERAL, S/LT
DETALHES DE INSTALAÇÃO E MONTAGEM
PS-052
S/E
052.20.0
5/5
PEDRO PAULO KEYLA
20 02 03 20 02 03
RELAÇÃO DE MATERIAL
REF UNID QUANTIDADE CÓDIGO ESTOQUE DESCRIÇÃO DO MATERIAL
C-3 KG 2,4 6771504 CABO CU NU 70mm² 19 FIOS MD DES-210.01
D-3 UM 01 6771191 ELETRODUTO PVC RIG ROSQ 1” DES-651.01
D-7 UMA 01 6771209 CURVA, 90GR, PVC RIG, ELET 1” DES-651.03
D-11 UMA 02 6771200 LUVA ELETRODUTO PVC RIG ROSQ 1” DES-651.02
D-25 UMA 01 0090009 UNIÃO, MACHO-FÊMEA, AÇO ZINC, ELET 1”
F-2 UMA 12 6770632 ARRUELA QUAD, AÇO ZINC, 50x3x18mm DES-410.03
F-6 UM 12 6770646 ARRUELA RED, AÇO ZINC, 36x3x18mm DES-410.01
F-7 UM 12 6770638 ARRUELA PRESS, AÇO ZINC, 24x4x17,5mm DES-410.02
F-24 UM 12 6770307 PARAFUSO, CAB QUAD, AÇO ZINC, M16x300 DES-410.10
O-12 UM 01 6770949 CONECTOR, ATERR, CU, 16-70mm
2
DES-710.25
O-13 UM 04 6770898 CONECTOR FEND, CU, 35-70mm
2
TR, 16-70mm
2
DR DES-710.35
O-30 UM 06 6770857 CONECTOR TERM, RETO, 4F, AL/CU, 6-750MCM DES-710.18 (NOTA 1)
O-31 UM 06 4543915 CONECTOR TERM, RETO, 2F, AL/CU 6-750MCM DES-710.17 (NOTA 1)
T-7 UM 03 4543476 PÓ, SOLDA, CARTUCHO 90 g DES-820.40
RELAÇÃO DE SECIONADORES TRIPOLAR – 15 kV MONTAGEM HORIZ. ALTA, ABERTURA LATERAL, S/LT
REF UNID QUANT E-SE-006 (TIPOS) CÓDIGO ESTOQUE DESCRIÇÃO DO EQUIPAMENTO
C1 6771473 SEC, TRIP, 15 kV, C1A, 630 A, HLMASLT E-SE-006 (*)
E-11
C10 6771002 SEC, TRIP, 15 kV, C10A, 630 A, HLMOSLT E-SE-006 (*)
C2 6771474 SEC, TRIP, 15 kV, C2A, 1250 A, HLMASLT E-SE-006 (*)
E-27
C3 6771482 SEC, TRIP, 15 kV, C3A, 1250 A, HLMOSLT E-SE-006 (*)
C4 6771475 SEC, TRIP, 15 kV, C4A, 2000 A, HLMASLT E-SE-006 (*)
E-29
UMA 01
C5 6771483 SEC, TRIP, 15 kV, C5A, 2000 A, HLMOSLT E-SE-006 (*)
Notas:
1- O conectores O-31 serão utilizados nos secionadores tipo C1 e C10, os O-30 nos secionadores tipo C2, C3,
C4 e C5.
(*) LEGENDA:
C1A – Chave Tipo C1 Alta
C2A – Chave Tipo C2 Alta
C3A – Chave Tipo C3 Alta
C4A – Chave Tipo C4 Alta
C5A – Chave Tipo C5 Alta
C10A – Chave Tipo C10 Alta
HLMASLT – Montagem Horizontal Alta, Abertura Lateral, Manual, Sem Lâmina de Terra
HLMOSLT – Montagem Horizontal Alta, Abertura Lateral, Motorizada, Sem Lâmina de Terra
Desenhista
Substitui Des. Nº
Verificado
Código / Página
Escala
Desenho Nº
Folha:
Aprovado
COELCE
Companhia Energética do Ceará
88/162
SECIONADOR UNIPOLAR 15 kV
MONTAGEM VERTICAL DUPLA, ABERTURA VERTICAL
DETALHES DE INSTALAÇÃO E MONTAGEM
PS-052
S/E
052.23.0
4/4
PEDRO PAULO KEYLA
20 02 03 20 02 03
RELAÇÃO DE MATERIAL
REF UNID QUANTIDADE CÓDIGO ESTOQUE DESCRIÇÃO DO MATERIAL
C-3 KG 0,6 6771504 CABO CU NU 70mm² 19 FIOS MD DES-210.01
F-2 UMA 24 6770632 ARRUELA QUAD, AÇO ZINC, 50x3x18mm DES-410.03
F-6 UM 24 6770646 ARRUELA RED, AÇO ZINC, 36x3x18mm DES-410.01
F-7 UM 48 6770638 ARRUELA PRESS, AÇO ZINC, 24x4x17,5mm DES-410.02
F-41 UM 12 6770597 PARAFUSO, ROSCA DUP, AÇO, M16x400 DES-410.28
O-13 UM 03 6770898 CONECTOR FEND, CU, 35-70mm
2
TR, 16-70mm
2
DR DES-710.35
O-30 UM 06 6770857 CONECTOR TERM, RETO, 4F, AL/CU, 6-750MCM DES-710.18 (NOTA 1)
O-31 UM 06 4543915 CONECTOR TERM, RETO, 2F, AL/CU, 6-750MCM DES-710.17 (NOTA 1)
T-7 UM 02 4543476 PÓ, SOLDA, CARTUCHO 90 g DES-820.40
RELAÇÃO DE SECIONADORES UNIPOLAR – 15 kV MONTAGEM VERTICAL DUPLA, ABERTURA VERTICAL
REF UNID QUANT E-SE-006 (TIPOS) CÓDIGO ESTOQUE DESCRIÇÃO DO EQUIPAMENTO
E-12 UMA 03 C8 6771479 SEC, UNIP; 15 kV; C8V; 1250 A; VVMA E-SE-006 (*)
E-13 UMA 03 C7 6771478 SEC, UNIP; 15 kV; C7V; 630 A; VVMA E-SE-006 (*)
E-30 UMA 03 C9 6771480 SEC, UNIP; 15 kV; C9V; 2000 A; VVMA E-SE-006 (*)
Notas:
1- O conectores O-31 serão utilizados nos secionadores tipo C7, os O-30 nos secionadores tipo C8 e C9.
(*) LEGENDA:
C7V – Chave Tipo C7 Montagem Vertical
C8V – Chave Tipo C8 Montagem Vertical
C9V – Chave Tipo C9 Montagem Vertical
VVMA – Montagem Vertical, Abertura Vertical, Manual
Desenhista
Substitui Des. Nº
Verificado
Código / Página
Escala
Desenho Nº
Folha:
Aprovado
COELCE
Companhia Energética do Ceará
96/162
SECIONADOR FUSÍVEL 15 kV
DETALHES DE INSTALAÇÃO E MONTAGEM
PS-052
S/E
052.25.0
4/4
PEDRO PAULO KEYLA
20 02 03 20 02 03
RELAÇÃO DE MATERIAL
REF UNID QUANTIDADE CÓDIGO ESTOQUE DESCRIÇÃO DO MATERIAL
C-3 KG 0,6 6771504 CABO CU NU 70mm² 19 FIOS MD DES-210.01
F-2 UMA 12 6770632 ARRUELA QUAD, AÇO ZINC, 50x3x18mm DES-410.03
F-6 UM 12 6770646 ARRUELA RED, AÇO ZINC, 36x3x18mm DES-410.01
F-7 UM 12 6770638 ARRUELA PRESS, AÇO ZINC, 24x4x17,5mm DES-410.02
F-23 UM 12 6770306 PARAFUSO, CAB QUAD, AÇO ZINC, M16x250 DES-410.10
O-13 UM 03 6770898 CONECTOR FEND, CU, 35-70mm
2
TR, 16-70mm
2
DR DES-710.35
O-31 UM 06 4543915 CONECTOR TERM, RETO, 2F, AL/CU 6-750MCM DES-710.17
T-7 UM 02 4543476 PÓ, SOLDA, CARTUCHO 90 g DES-820.40
RELAÇÃO DE SECIONADOR FUSÍVEL – 15 kV MONTAGEM VERTICAL, ABERTURA VERTICAL
REF UNID QUANT DES-135.02 (TIPO) CÓDIGO ESTOQUE DESCRIÇÃO DO EQUIPAMENTO
E-15 UMA 03 C 6771334 CHAVE, FUS; C; 24 kV; 400 A; 6,3 kA; VIGA DES-135.02
!  # $ %  ' ( ) % *
!  # $ %  ' ( ) % *
Desenhista
Substitui Des. Nº
Verificado
Código / Página
Escala
Desenho Nº
Folha:
Aprovado
COELCE
Companhia Energética do Ceará
103/162
CAIXA DE LIGAÇÃO PARA PONTO DE CONEXÃO TRIFÁSICO
DETALHES DE INSTALAÇÃO E MONTAGEM
PS-052
S/E
052.27.0
3/3
PEDRO PAULO KEYLA
20 02 03 20 02 03
RELAÇÃO DE MATERIAL
REF UNID QUANTIDADE CÓDIGO ESTOQUE DESCRIÇÃO DO MATERIAL
C-3 KG - 6771504 CABO CU NU 70mm² 19 FIOS MD DES-210.01
D-1 UM 01 6771193 ELETRODUTO PVC RIG ROSQ 2” 3m DES-651.01
D-5 UMA 01 6771211 CURVA, 90GR, PVC RIG, ELET 2” DES-651.03
D-9 UMA 02 6771202 LUVA ELETRODUTO PVC RIG ROSQ 2” DES-651.02
D-19 UMA 01 6771386 BUCHA , BAQ, SEXT, FIX ELET 2” DES-641.25
D-22 UMA 01 6770654 ARRUELA SEXT FE NODULAR ELET 2” DES-641.20
D-39 UMA 01 0090012 RÉGUA , BORNES, TERM, BAQ, 5 POLOS 600V/150 A
D-43 UMA 01 6775622 CAIXA LIG, RET, EQUIP TEMPO, LIGA AL , ITEM 2 DES-641.05
F-5 UMA 08 6770645 ARRUELA RED, AÇO ZINC, 28x3x14mm DES-410.01
F-10 UMA 02 6771837 CANTONEIRA, AÇO ZINC, U-50x38x5x310x430mm DES-435.31
F-12 UMA 02 6771829 CANTONEIRA, AÇO ZINC, L, 40x5x250mm DES-435.21
F-29 UM 04 6770350 PARAFUSO, CAB QUAD, AÇO ZINC, M12x250 DES-410.11
F-47 UM 04 6770560 PARAFUSO, CAB QUAD, AÇO ZINC, M10x50 DES-410.12
F-56 UMA 08 6770644 ARRUELA RED, AÇO ZINC, 22x2x12mm DES-410.01
N-5 UM 01 6771169 DISJUNTOR, BT, 3P, 100 A, 380 V /5 kA C/FIX
O-12 UM 01 6770949 CONECTOR, ATERR, CU, 16-70mm
2
DES-710.25
O-13 UM 01 6770898 CONECTOR FEND, CU, 35-70mm
2
TR, 16-70mm
2
DR DES-710.35
T-3 UMA 01 6771912 CHAPA, CURVA, ATERR, CAZ, D=14 mm DES-800.20
T-7 UM 01 4543476 PÓ, SOLDA, CARTUCHO 90 g DES-820.40
!  # $ %  ' ( ) % *
!  # $ %  ' ( ) % *
Desenhista
Substitui Des. Nº
Verificado
Código / Página
Escala
Desenho Nº
Folha:
Aprovado
COELCE
Companhia Energética do Ceará
112/162
CONJUNTO DE DUAS LUMINÁRIAS A 90º
MONTADAS EM POSTE DE CONCRETO 9.000 mm
DETALHES DE INSTALAÇÃO E MONTAGEM
PS-052
S/E
052.30.0
3/3
PEDRO PAULO KEYLA
20 02 03 20 02 03
RELAÇÃO DE MATERIAL
REF UNID QUANTIDADE CÓDIGO ETOQUE DESCRIÇÃO DO MATERIAL
C-3 KG 06 6771504 CABO CU NU 70mm² 19 FIOS MD DES-210.01
D-3 UM 03 6771191 ELETRODUTO PVC RIG ROSQ 1” 3 m DES-651.01
D-7 UMA 01 6771209 CURVA, 90GR, PVC RÍG, ELET 1” DES-651.03
D-11 UMA 05 6771200 LUVA ELETRODUTO PVC RÍG ROSQ 1” DES-651.02
D-17 UMA 02 6771384 BUCHA, BAQ, SEXT, FIX ELET 1” DES-641.25
D-37 UM 01 0090001 CABEÇOTE, BAQ, ELET/CX MED, 1” DES-435.10
F-2 UMA 01 6770632 ARRUELA QUAD, AÇO ZINC, 50x3x18mm DES-410.03
F-6 UMA 07 6770646 ARRUELA RED, AÇO ZINC, 36x3x18mm DES-410.01
F-22 UM 02 6770305 PARAFUSO, CAB QUAD, AÇO ZINC, M16x200 DES-410.10 (NOTA 1)
F-23 UM 02 6770306 PARAFUSO, CAB QUAD, AÇO ZINC, M16x250 DES-410.10 (NOTA 1)
F-34 UM 04 6770594 PARAFUSO, AUTO-ATAR, CAB CIL, 4,8x50 DES-410.32
L-2 UMA 04 6771901 ABRAÇADEIRA, UNHA, 32 (1”) D7 DES-655.20
L-4 UM 02 6771027 BRAÇO, LUMI, 250/400 W, AÇO ZINC 2500 mm DES-608.02
L-7 UMA 02 6771773 LÂMPADA, SÓDIO, 150 W, BASE E-40 DES-606.03
L-8 UMA 02 6771731 LUM, FECH, LÂMP HG/NA, 150/400 W DES-600.03
L-11 UM 02 6771762 REATOR, AFP, NA, 150 W, 220 V, C/ IG, EXT DES-601.03
L-16 UMA 01 6771023 BASE, RELÉ FOTOELÉTRICO DES-604.02
L-17 UM 01 6771021 RELÉ FOTOELÉTRICO, NF, 220 V, 1000 W, USO EXTERNO DES-604.01
N-1 UMA 04 6770615 BUCHA, NYLON, S-8, P/PARAF 4,8x50 mm
O-12 UM 04 6770949 CONECTOR, ATERR, CU, 16-70 mm
2
DES-710.25
O-13 UM 02 6770898 CONECTOR FEND, CU, 35-70mm
2
TR, 16-70mm
2
DR DES-710.35
P-24 UM 01 6770686 POSTE, CONC, DUPLO T, 9 m, 300 daN, TIPO B, ET-300
T-7 UM 01 4543476 PÓ, SOLDA, CARTUCHO 90 g DES-820.40
NOTA:
1- O PARAFUSO F-22 É UTILIZADO NO LADO DE MENOR ESFORÇO, E O PARAFUSO F-23 NO LADO DE MAIOR ESFORÇO.
!  # $ %  ' ( ) % *
!  # $ %  ' ( ) % *
Desenhista
Substitui Des. Nº
Verificado
Código / Página
Escala
Desenho Nº
Folha:
Aprovado
COELCE
Companhia Energética do Ceará
118/162
CONJUNTO DE TRÊS LUMINÁRIAS A 90º
MONTADAS EM POSTE DE CONCRETO 9.000 mm
DETALHES DE INSTALAÇÃO E MONTAGEM
PS-052
S/E
052.32.0
3/3
PEDRO PAULO KEYLA
20 02 03 20 02 03
RELAÇÃO DE MATERIAL
REF UNID QUANTIDADE CÓDIGO ETOQUE DESCRIÇÃO DO MATERIAL
C-3 KG 06 6771504 CABO CU NU 70mm² 19 FIOS MD DES-210.01
D-3 UM 03 6771191 ELETRODUTO PVC RÍG ROSQ 1” 3 m DES-651.01
D-7 UMA 01 6771209 CURVA, 90GR, PVC RÍG, ELET 1” DES-651.03
D-11 UMA 05 6771200 LUVA ELETRODUTO PVC RÍG ROSQ 1” DES-651.02
D-17 UMA 02 6771384 BUCHA, BAQ, SEXT, FIX ELET 1” DES-641.25
D-37 UM 01 0090001 CABEÇOTE, BAQ, ELET/CX MED, 1” DES-435.10
F-6 UMA 08 6770646 ARRUELA RED, AÇO ZINC, 36x3x18mm DES-410.01
F-22 UM 02 6770305 PARAFUSO, CAB QUAD, AÇO ZINC, M16x200 DES-410.10 (NOTA 1)
F-23 UM 02 6770306 PARAFUSO, CAB QUAD, AÇO ZINC, M16x250 DES-410.10 (NOTA 1)
F-34 UM 04 6770594 PARAFUSO, AUTO-ATAR, CAB CIL, 4,8x50 DES-410.32
L-2 UMA 04 6771901 ABRAÇADEIRA, UNHA, 32 (1”) D7 DES-655.20
L-4 UM 03 6771027 BRAÇO, LUMI, 250/400 W, AÇO ZINC 2500 mm DES-608.02
L-7 UMA 03 6771773 LÂMPADA, SÓDIO, 150 W, BASE E-40 DES-606.03
L-8 UMA 03 6771731 LUM, FECH, LÂMP HG/NA, 150/400 W DES-600.03
L-11 UM 03 6771762 REATOR, AFP, NA, 150 W, 220 V, C/ IG, EXT DES-601.03
L-16 UMA 01 6771023 BASE, RELÉ FOTOELÉTRICO DES-604.02
L-17 UM 01 6771021 RELÉ FOTOELÉTRICO, NF, 220 V, 1000 W, USO EXTERNO DES-604.01
N-1 UMA 04 6770615 BUCHA, NYLON, S-8, P/PARAF 4,8x50 mm
O-12 UM 06 6770949 CONECTOR, ATERR, CU, 16-70 mm
2
DES-710.25
O-13 UM 02 6770898 CONECTOR FEND, CU, 35-70mm
2
TR, 16-70mm
2
DR DES-710.35
P-24 UM 01 6770686 POSTE, CONC, DUPLO T, 9 m, 300 daN, TIPO B, ET-300
T-7 UM 01 4543476 PÓ, SOLDA, CARTUCHO 90 g DES-820.40
T-10 UMA 01 6771856 CHAPA, FIXAÇÃO, CAZ, 450x60x12 mm DES-435.50
NOTA:
1- O PARAFUSO F-22 É UTILIZADO NO LADO DE MENOR ESFORÇO, E O PARAFUSO F-23 NO LADO DE MAIOR ESFORÇO.
!  # $ %  ' ( ) % *
Desenhista
Substitui Des. Nº
Verificado
Código / Página
Escala
Desenho Nº
Folha:
Aprovado
COELCE
Companhia Energética do Ceará
120/162
LUMINÁRIA DE EMERGÊNCIA
MONTADA EM POSTE DE CONCRETO
DETALHES DE INSTALAÇÃO E MONTAGEM
PS-052
S/E
052.33.0
2/2
PEDRO PAULO KEYLA
20 02 03 20 02 03
RELAÇÃO DE MATERIAL
REF UNID QUANTIDADE CÓDIGO ETOQUE DESCRIÇÃO DO MATERIAL
C-3 KG - 6771504 CABO CU NU 70mm² 19 FIOS MD DES-210.01
D-4 UM 02 6771190 ELETRODUTO PVC RÍG ROSQ 3/4” 3 m DES-651.01
D-8 UMA 01 6771208 CURVA, 90GR, PVC RÍG, ELET 3/4” DES-651-03
D-12 UMA 03 6771199 LUVA ELETRODUTO PVC RÍG ROSQ 3/4” DES-651.02
F-34 UM 04 6770594 PARAFUSO, AUTO-ATAR, CAB CIL, 4,8x50 DES-410.32
L-3 UMA 02 6771897 ABRAÇADEIRA, TIPO UNHA, 25 (3/4”), D7 DES-655.20
L-9 UMA 01 4544265 LÂMPADA, INCAND, 100 W, 130 VCC, PADRÃO, E-27
L-10 UMA 01 6771730 LUM, FECH, AL, LÂMP INCAND, 100 W, 130 V, Y-16
L-18 UM 03 0090016 BUJÃO, SELADOR, PVC, ROSCA 3/4“
N-1 UMA 04 6770615 BUCHA, NYLON, S-8, P/PARAF 4,8x50 mm
!  # $ %  ' ( ) % *
Desenhista
Substitui Des. Nº
Verificado
Código / Página
Escala
Desenho Nº
Folha:
Aprovado
COELCE
Companhia Energética do Ceará
122/162
TOMADAS EXTERNAS MONOFÁSICAS E TRIFÁSICAS
DETALHES DE INSTALAÇÃO E MONTAGEM
PS-052
S/E
052.34.0
2/2
PEDRO PAULO KEYLA
20 02 03 20 02 03
RELAÇÃO DE MATERIAL
REF UNID QUANTIDADE CÓDIGO ETOQUE DESCRIÇÃO DO MATERIAL
C-3 KG - 6771504 CABO CU NU 70mm² 19 FIOS MD DES-210.01
D-3 UM 01 6771191 ELETRODUTO PVC RÍG ROSQ 1” 3 m DES-651.01
D-7 UMA 01 6771209 CURVA, 90GR, PVC RÍG, ELET 1” DES-651-03
D-11 UMA 02 6771200 LUVA ELETRODUTO PVC RÍG ROSQ 1” DES-651.02
F-34 UM 05 6770594 PARAFUSO, AUTO-ATAR, CAB CIL, 4,8x50 DES-410.32
L-2 UMA 01 6771901 ABRAÇADEIRA, TIPO UNHA, 32 (1”), D7 DES-655.20
L-13 UMA 01 4544024 TOMADA, BLIN, RED, 20 A, 500 V, 4 PÓLOS DES-621.20
L-14 UMA 01 4544022 TOMADA, BLIN, RED, 20 A, 500 V, 3 PÓLOS DES-621.20
L-19 UM 05 0090017 BUJÃO, SELADOR, PVC, ROSCA 1“
N-1 UMA 05 6770615 BUCHA, NYLON, S-8, P/PARAF 4,8x50 mm
!  # $ %  ' ( ) % *
Desenhista
Substitui Des. Nº
Verificado
Código / Página
Escala
Desenho Nº
Folha:
Aprovado
COELCE
Companhia Energética do Ceará
126/162
CADEIA DE ANCORAGEM 69 kV COM ALÇA PREFORMADA
DETALHES DE INSTALAÇÃO E MONTAGEM
PS-052
S/E
052.36.0
2/2
PEDRO PAULO KEYLA
20 02 03 20 02 03
RELAÇÃO DE MATERIAL
REF UNID QUANTIDADE CÓDIGO ETOQUE DESCRIÇÃO DO MATERIAL
C-1 KG - 6771528 CABO, NU CAA, 266,8 MCM, 26/7 FIOS, PARTRIDGE DES-211.02 (NOTA 1)
C-3 KG 0,5 6771504 CABO CU NU 70mm² 19 FIOS MD DES-210.01
C-12 KG - 4544172 CABO, NU CA, 556,5 MCM, 19 FIOS, DAHLIA DES-211.01 (NOTA 1)
F-3 UMA 01 6770631 ARRUELA QUAD, AÇO ZINC, 50x5x22 mm DES-410.03
F-18 UM 01 6770332 PARAFUSO, CAB QUAD, AÇO ZINC, M20x350 DES-410.09 (NOTA 2)
F-19 UM 01 6770333 PARAFUSO, CAB QUAD, AÇO ZINC, M20x400 DES-410.09 (NOTA 2)
F-45 UMA 01 6770647 ARRUELA RED, AÇO ZINC, 44x5x22 mm DES-410.01
F-57 UMA 01 6770639 ARRUELA PRESS, AÇO ZINC, 28x4x22 mm DES-410.02
I-1 UM 06 6771068 ISOLADOR, DISCO, VIDRO, D=255, E=280, CB, DES-500.40
I-4 UM 01 6770972 GANCHO-BOLA, AÇO ZINC, 12.000 daN DES-510.19
I-5 UMA 01 6770968 CONCHILHA, CAZ, 8.000 daN DES-510.12
I-6 UM 01 6770619 OLHAL,PARAF M20, AÇO ZINC, 12.000 daN DES-410.05
O-12 UM 01 6770949 CONECTOR, ATERR, CU, 16-70 mm
2
DES-710.25
O-13 UM 01 6770898 CONECTOR FEND, CU, 35-70mm
2
TR, 16-70mm
2
DR DES-710.35
R-1 UMA 01 6770193 ALÇA PREF, DIST, CA 556,5 MCM, CAA 477 MCM DES-730.02 (NOTA 3)
R-8 UMA 01 6770190 ALÇA PREF, DIST, CAA 266,8 MCM, 26/7 FIOS DES-730.02 (NOTA 3)
T-1 UMA 01 6771910 CHAPA, CURVA, ATERR, CAZ, D=22 mm DES-800.20
NOTAS:
1- O CABO TIPO C-1 É UTILIZADO NAS SUBESTAÇÕES DE PEQUENO PORTE, E O CABO TIPO C-12 É UTILIZADO NAS SUBESTAÇÕES
DE GRANDE PORTE;
2- O PARAFUSO F-18 É UTILIZADO NO LADO DE MENOR ESFORÇO DA VIGA, E O PARAFUSO F-19 NO LADO DE MAIOR ESFORÇO;
3- A ALÇA R-8 É UTILIZADA PARA AS SUBESTAÇÕES DE PEQUENO PORTE, E A ALÇA R-1 É UTILIZADA NAS SUBESTAÇÕES DE
GRANDE PORTE;
4- O MATERIAL REFERE-SE A UMA ÚNICA CADEIA DE ISOLADORES.
!  # $ %  ' ( ) % *
Desenhista
Substitui Des. Nº
Verificado
Código / Página
Escala
Desenho Nº
Folha:
Aprovado
COELCE
Companhia Energética do Ceará
130/162
CADEIA DE ANCORAGEM 13,8 kV PARA CABO DE 240 mm2
DETALHES DE INSTALAÇÃO E MONTAGEM
PS-052
S/E
052.38.0
2/2
PEDRO PAULO KEYLA
20 02 03 20 02 03
RELAÇÃO DE MATERIAL
REF UNID QUANTIDADE CÓDIGO ETOQUE DESCRIÇÃO DO MATERIAL
C-3 KG 01 6771504 CABO CU NU 70mm² 19 FIOS MD DES-210.01
C-13 KG - 6771511 CABO CU NU 240mm² 37 FIOS MD DES-210.01
F-2 UMA 01 6770632 ARRUELA QUAD, AÇO ZINC, 50x3x18mm DES-410.03
F-6 UMA 01 6770646 ARRUELA RED, AÇO ZINC, 36x3x18 mm DES-410.01
F-7 UMA 01 6770638 ARRUELA, PRESS, CAZ, 24x4x17,5 mm DES-410.02
F-22 UM 01 6770305 PARAFUSO, CAB QUAD, AÇO ZINC, M16x200 DES-410.10 (NOTA 1)
F-23 UM 01 6770306 PARAFUSO, CAB QUAD, AÇO ZINC, M16x250 DES-410.10 (NOTA 1)
I-2 UM 03 6771067 ISOLADOR, DISCO, VIDRO, D=175, P=140, GO, DES-500.30
I-8 UM 01 6770618 OLHAL,PARAF M16, AÇO ZINC, 5.000 daN DES-410.05
I-10 UMA 02 6770977 MANILHA, AÇO ZINC, 16 mm, 12.000 daN DES-510.11
O-12 UM 01 6770949 CONECTOR, ATERR, CU, 16-70 mm
2
DES-710.25
O-13 UM 01 6770898 CONECTOR FEND, CU, 35-70mm
2
TR, 16-70mm
2
DR DES-710.35
R-6 UM 01 6770964 GRAMPO, ANC, TERM, CU, 120-240 mm
2
DES-710.30
T-2 UMA 01 6771911 CHAPA, CURVA, ATERR, CAZ, D=18 mm DES-800.20
NOTAS:
1- O PARAFUSO F-22 É UTILIZADO NO LADO DE MENOR ESFORÇO DA VIGA, E O PARAFUSO F-23 É UTILIZADO NO LADO DE MAIOR
ESFORÇO;
2- O MATERIAL REFERE-SE A UMA ÚNICA CADEIA DE ISOLADORES.
!  # $ %  ' ( ) % *
Desenhista
Substitui Des. Nº
Verificado
Código / Página
Escala
Desenho Nº
Folha:
Aprovado
COELCE
Companhia Energética do Ceará
142/162
COLUNA DE ISOLADORES 69 kV
MONTAGEM VERTICAL OU HORIZONTAL PELA BASE
DETALHES DE INSTALAÇÃO E MONTAGEM
PS-052
S/E
052.44.0
2/2
PEDRO PAULO KEYLA
20 02 03 20 02 03
RELAÇÃO DE MATERIAL
REF UNID QUANTIDADE CÓDIGO ETOQUE DESCRIÇÃO DO MATERIAL
C-1 KG - 6771528 CABO, NU CAA, 266,8 MCM, 26/7 FIOS, PARTRIDGE DES-211.02 (NOTA 1)
C-3 KG 0,5 6771504 CABO, CU NU 70mm² 19 FIOS MD DES-210.01
F-1 UMA 02 6770633 ARRUELA, QUAD, AÇO ZINC, 38x3x14mm DES-410.03
F-5 UMA 02 6770645 ARRUELA RED, AÇO ZINC, 28x3x14mm DES-410.01
F-30 UM 02 6770351 PARAFUSO, CAB QUAD, AÇO ZINC, M12x300 DES-410.11
F-32 UM 02 6770353 PARAFUSO, CAB QUAD, AÇO ZINC, M12x400 DES-410.11
F-49 UMA 02 6770623 PORCA QUAD, AÇO ZINC, M12x1,5 DES-410.04
F-55 UMA 01 6770637 ARRUELA, PRESS, CAZ, 18x3x13,5 mm DES-410.02
I-3 UM 02 6771071 ISOLADOR, PED, PORC, D=355, H=368 DES-503.05
O-5 UM 01 6771492 CONECTOR, SUP, CAA 266,8MCM, TUBO 3/8” - 1/2” DES-710.08
O-12 UM 01 6770949 CONECTOR, ATERR, CU, 16-70 mm
2
DES-710.25
O-13 UM 01 6770898 CONECTOR FEND, CU, 35-70mm
2
TR, 16-70mm
2
DR DES-710.35
T-3 UMA 01 6771912 CHAPA, CURVA, ATERR, CAZ, D=14 mm DES-800.20
NOTAS:
1- O CABO TIPO C-1 É USADO NAS SUBESTAÇÕES DE PEQUENO PORTE.
!  # $ %  ' ( ) % *
Desenhista
Substitui Des. Nº
Verificado
Código / Página
Escala
Desenho Nº
Folha:
Aprovado
COELCE
Companhia Energética do Ceará
144/162
COLUNA DE ISOLADORES 69 kV
MONTAGEM VERTICAL OU HORIZONTAL PELO TOPO
DETALHES DE INSTALAÇÃO E MONTAGEM
PS-052
S/E
052.45.0
2/2
PEDRO PAULO KEYLA
20 02 03 20 02 03
RELAÇÃO DE MATERIAL
REF UNID QUANTIDADE CÓDIGO ETOQUE DESCRIÇÃO DO MATERIAL
C-1 KG - 6771528 CABO, NU CAA, 266,8 MCM, 26/7 FIOS, PARTRIDGE DES-211.02 (NOTA 1)
C-3 KG 0,5 6771504 CABO, CU NU 70mm² 19 FIOS MD DES-210.01
F-1 UMA 02 6770633 ARRUELA, QUAD, AÇO ZINC, 38x3x14mm DES-410.03
F-5 UMA 02 6770645 ARRUELA RED, AÇO ZINC, 28x3x14mm DES-410.01
F-40 UM 02 6770602 PARAFUSO, ROSCA DUP, CAZ, M12x400 DES-410.29
F-42 UM 02 6770601 PARAFUSO, ROSCA DUP, CAZ, M12x300 DES-410.29
F-55 UMA 01 6770637 ARRUELA, PRESS, CAZ, 18x3x13,5 mm DES-410.02
I-3 UM 02 6771071 ISOLADOR, PED, PORC, D=355, H=368 DES-503.05
O-5 UM 01 6771492 CONECTOR, SUP, CAA 266,8MCM, TUBO 3/8” - 1/2” DES-710.08
O-12 UM 01 6770949 CONECTOR, ATERR, CU, 16-70 mm
2
DES-710.25
O-13 UM 01 6770898 CONECTOR FEND, CU, 35-70mm
2
TR, 16-70mm
2
DR DES-710.35
T-3 UMA 01 6771912 CHAPA, CURVA, ATERR, CAZ, D=14 mm DES-800.20
NOTAS:
1- O CABO TIPO C-1 É USADO NAS SUBESTAÇÕES DE PEQUENO PORTE.
!  # $ %  ' ( ) % *
Desenhista
Substitui Des. Nº
Verificado
Código / Página
Escala
Desenho Nº
Folha:
Aprovado
COELCE
Companhia Energética do Ceará
146/162
ISOLADOR DE PEDESTAL 15 kV
MONTAGEM VERTICAL OU HORIZONTAL PELA BASE
DETALHES DE INSTALAÇÃO E MONTAGEM
PS-052
S/E
052.46.0
2/2
PEDRO PAULO KEYLA
20 02 03 20 02 03
RELAÇÃO DE MATERIAL
REF UNID QUANTIDADE CÓDIGO ETOQUE DESCRIÇÃO DO MATERIAL
C-3 KG 0,5 6771504 CABO, CU NU 70mm² 19 FIOS MD DES-210.01
C-13 KG - 6771511 CABO CU NU 240mm² 37 FIOS MD DES-210.01
F-1 UMA 02 6770633 ARRUELA, QUAD, AÇO ZINC, 38x3x14mm DES-410.03
F-5 UMA 02 6770645 ARRUELA RED, AÇO ZINC, 28x3x14mm DES-410.01
F-29 UM 02 6770350 PARAFUSO, CAB QUAD, AÇO ZINC, M12x250 DES-410.11
F-49 UMA 02 6770623 PORCA QUAD, AÇO ZINC, M12x1,5 DES-410.04
F-55 UMA 01 6770637 ARRUELA, PRESS, CAZ, 18x3x13,5 mm DES-410.02
I-12 UM 01 6771074 ISOLADOR, PED, PORC, D=205, H=254 DES-503.05
O-12 UM 01 6770949 CONECTOR, ATERR, CU, 16-70 mm
2
DES-710.25
O-13 UM 01 6770898 CONECTOR FEND, CU, 35-70mm
2
TR, 16-70mm
2
DR DES-710.35
O-22 UM 01 6770946 CONECTOR, SUPORTE, CU 120-500mm
2
DES-710.09
T-3 UMA 01 6771912 CHAPA, CURVA, ATERR, CAZ, D=14 mm DES-800.20
Desenhista
Substitui Des. Nº
Verificado
Código / Página
Escala
Desenho Nº
Folha:
Aprovado
COELCE
Companhia Energética do Ceará
152/162
ATERRAMENTO DE PORTÃO
DETALHES DE INSTALAÇÃO E MONTAGEM
PS-052
S/E
052.49.0
2/2
PEDRO PAULO KEYLA
20 02 03 20 02 03
RELAÇÃO DE MATERIAL
REF UNID QUANTIDADE CÓDIGO ETOQUE DESCRIÇÃO DO MATERIAL
C-3 KG 01 6771504 CABO CU NU 70mm² 19 FIOS MD DES-210.01
D-40 UMA 02 0090015 ABRAÇADEIRA, GRAMPO, U, A2, 35x90 mm, COMPLETA
O-12 UM 02 6770949 CONECTOR, ATERR, CU, 16-70 mm
2
DES-710.25
T-5 UMA 02 6771314 HASTE, ATERR, AÇO-CU, CIRC, 19x3000 mm DES-800.03
T-8 UM 02 4543477 PÓ, SOLDA, CARTUCHO 115 g DES-820.40
T-11 UMA 02 0090018 CORDOALHA FLEXÍVEL, COBRE ESTANHADO, 350 mm
Desenhista
Substitui Des. Nº
Verificado
Código / Página
Escala
Desenho Nº
Folha:
Aprovado
COELCE
Companhia Energética do Ceará
154/162
SECIONAMENTO DE CERCAS TRANSVERSAIS
DETALHES DE INSTALAÇÃO E MONTAGEM
PS-052
S/E
052.50.0
2/2
PEDRO PAULO KEYLA
20 02 03 20 02 03
RELAÇÃO DE MATERIAL
REF UNID QUANTIDADE CÓDIGO ETOQUE DESCRIÇÃO DO MATERIAL
C-17 KG 03 6771522 CABO, ATERR, AÇO-CU, 7x10 AWG DES-805.02
R-7 UM 10 6770242 SECIONADOR, PREF CERCA, 3,25-4,11 mm DES-750.01
T-6 UM 01 6771313 HASTE, ATERR, AÇO-CU, CIRC, 13x2000 mm DES-800.01
T-8 UM 01 4543477 PÓ, SOLDA, CARTUCHO 115 g DES-820.40
Desenhista
Substitui Des. Nº
Verificado
Código / Página
Escala
Desenho Nº
Folha:
Aprovado
COELCE
Companhia Energética do Ceará
160/162
HASTE PÁRA-RAIOS PERFIL “L”
USO NAS ESTRUTURAS DA SUBESTAÇÃO
DETALHES DE INSTALAÇÃO E MONTAGEM
PS-052
S/E
052.54.0
2/2
PEDRO PAULO KEYLA
20 02 03 20 02 03
RELAÇÃO DE MATERIAL
REF UNID QUANTIDADE CÓDIGO ESTOQUE DESCRIÇÃO DO MATERIAL
C-3 KG 06 6771504 CABO CU NU 70mm² 19 FIOS MD DES-210.01
F-2 UMA 02 6770632 ARRUELA QUAD, AÇO ZINC, 50x3x18mm DES-410.03
F-6 UMA 02 6770646 ARRUELA RED, AÇO ZINC, 36x3x18mm DES-410.01
F-23 UM 02 6770306 PARAFUSO, CAB QUAD, AÇO ZINC, M16x250 DES-410.10
O-12 UM 01 6770949 CONECTOR, ATERR, CU, 16-70mm
2
DES-710.25
T-4 UM 01 6771012 HASTE, PÁRA-RAIOS, L-50x6x4500mm DES-157.10

PROJETO DA SUBESTAÇÃO 69_13,8 KV.pdf

  • 1.
    UNIVERSIDADE FEDERAL DOCEARÁ CENTRO DE TECNOLOGIA DEPARTAMENTO DE ENGENHARIA ELÉTRICA PROJETO DA SUBESTAÇÃO 69/13,8 KV DA UFC-CAMPUS DO PICI João Victor da Costa Vale Fortaleza Maio de 2011
  • 2.
    ii JOÃO VICTOR DACOSTA VALE PROJETO DA SUBESTAÇÃO 69/13,8 KV DA UFC-CAMPUS DO PICI Monografia submetida à Universidade Federal do Ceará como parte dos requisitos para obtenção do Diploma de Graduação Engenharia Elétrica. Orientador: Prof. Raimundo Furtado Sampaio Co-orientador: Eng. Roberto Freire de Castro Alves Fortaleza Maio de 2011
  • 3.
    iii JOÃO VICTOR DACOSTA VALE PROJETO DA SUBESTAÇÃO 69/13,8 KV DA UFC-CAMPUS DO PICI Esta dissertação foi julgada adequada para obtenção do Diploma de Graduação em Engenharia Elétrica e aprovada em sua forma final pelo programa de Graduação em Engenharia Elétrica na Universidade Federal do Ceará. ______________________________________________________ João Victor da Costa Vale Banca Examinadora: ______________________________________________________ Prof. Raimundo Furtado Sampaio. Presidente ______________________________________________________ Eng. Roberto Freire de Castro Alves ______________________________________________________ Prof. Tomaz Nunes Cavalcante Neto Fortaleza, Maio de 2011
  • 4.
    iv “Tudo posso n’Aqueleque me fortalece” (Filipenses 4.13)
  • 5.
    v A Deus, Aos meuspais, João Bosco e Maria Lúcia.
  • 6.
    vi AGRADECIMENTOS Primeiramente a Deus,pelo dom da vida e por iluminar o meu caminho nos momentos de maior escuridão. Aos meus pais, João Bosco e Maria Lúcia, por estarem sempre ao meu lado nos momentos bons e, principalmente, nos ruins. Suas orientações e o seu apoio não serão esquecidos jamais. À minha namorada, Débora, pela compreensão e pela força que sempre me deu para seguir adiante com este projeto, quando tudo parecia impossível e eu estava perdido nas minhas dúvidas. Ao professor/engenheiro Raimundo Furtado, pela paciência, disponibilidade e ajuda na concatenação das idéias para a escrita desta monografia. Exemplo de professor. Ao engenheiro Roberto Freire, pela simplicidade com que consegue resolver problemas e por abrir os meus olhos para a profissão de engenheiro num momento em que a dúvida parecia vencer. À engenheira Silvia Helena, por tentar passar um pouco do muito que sabe sobre projeto eletromecânico de subestações. A sua ajuda foi uma das mais, senão A MAIS, fundamentais para a realização deste trabalho. Ao engenheiro Gilson Alves Teixeira, por ter sempre acreditado no meu trabalho. A todas as pessoas que fazem parte da Área de Projetos de Linhas e Subestações da COELCE que eu não mencionei o meu agradecimento individualmente, mas que não são menos importantes: Célia Amaral, Soleide, Adail Carnaúba, Hélio Carnaúba, Anselmo, Átila Monteiro, Samy Auad, Marcos Henrique, Delano Coimbra e, propositalmente, por fim, Luiz (Louis) Chaves.
  • 7.
    vii Vale, João Victorda C. e “Estudo e Projeto da Subestação 69/13,8 kV da UFC – Campus do Pici”, Universidade Federal do Ceará – UFC, 2011, 86p. Esta monografia apresenta o estudo dos equipamentos e o projeto eletromecânico da subestação abaixadora aérea 69/13,8 kV, 5/6,25 MVA, do Campus do Pici da Universidade Federal do Ceará, seguindo as normas da concessionária local, COELCE. São apresentados os seus principais equipamentos constituintes, bem como suas características a serem especificadas no momento da compra. O processo de implantação de uma subestação é subdividido em subprocessos que vão desde o planejamento até a energização da subestação. Todos esses subprocessos são descritos. Apresenta-se uma proposta de arranjo eletromecânico para a subestação do Campus do Pici com uma entrada de linha de 69 kV, barramentos simples em AT e MT, potência inicial de 5/6,25 MVA, com possibilidade de expansão e três alimentadores MT. Também é feito um memorial descritivo do projeto eletromecânico, com a especificação técnica dos equipamentos a serem adquiridos e um orçamento do custo total da subestação. Palavras-Chave: subestação, equipamentos, sistemas de potência.
  • 8.
    viii Vale, João Victorda C. e “Project of the UFC – Campus do Pici 6/13,8 kV substation”, Universidade Federal do Ceará – UFC, 2011, 86p. This monography presents the study or equipment and the electromechanical project of an step-down outdoor 69/13,8 kV, 5/6,25 substation following the local electrical company standards. Its principal equipment are presented and the characteristics to be specified in the buying moment. The establishment process of an substation is divided into sub processes witch goes from planning to energization. All these sub processes are described. It is done a proposal of an electromechanical scheme to de Campus do Pici substation with an in line of 69 kV, simple busbar arrangement in HV and MV, initial power of 5/6,25 MVA with expansion possibility and three outlines of 13,8 kV. Also is done a technical report with the technical specifications of the equipments to be acquired and a budget to estimate the total cost of the substation. . Keywords: substation, equipments, power systems.
  • 9.
    ix SUMÁRIO LISTA DE FIGURAS...............................................................................................................xi LISTA DE TABELAS .............................................................................................................xii CAPÍTULO 1 INTRODUÇÃO..........................................................................................................................1 1.1 JUSTIFICATIVA.......................................................................................................3 1.2 OBJETIVOS...............................................................................................................3 1.3 ESTRUTURA DO TRABALHO...............................................................................3 CAPÍTULO 2 SUBESTAÇÕES DE ENERGIA ELÉTRICA...........................................................................5 2.1 CLASSIFICAÇÃO DAS SEs.....................................................................................5 2.1.1 CLASSIFICAÇÃO QUANTO AO NÍVEL DE TENSÃO................................5 2.1.2 CLASSIFICAÇÃO QUANTO A CONFIGURAÇÃO ......................................5 2.1.3 CLASSIFICAÇÃO QUANTO A FUNÇÃO......................................................7 2.2 EQUIPAMENTOS DE UMA SE...............................................................................7 2.3 BARRAMENTOS......................................................................................................9 2.4 DISJUNTORES........................................................................................................14 2.4.1 ESPECIFICAÇÃO DE DISJUNTORES .........................................................16 2.5 TRANSFORMADORES DE FORÇA.....................................................................17 2.5.1 ESPECIFICAÇÃO DE TRANSFORMADORES DE FORÇA.......................23 2.6 CHAVES SECCIONADORAS................................................................................24 2.6.1 ESPECIFICAÇÃO DE CHAVES SECCIONADORAS .................................25 2.7 PARA-RAIOS ..........................................................................................................25 2.7.1 ESPECIFICAÇÃO PARA-RAIOS ..................................................................26 CAPÍTULO 3 PROJETO DE SUBESTAÇÕES..............................................................................................28 3.1 IMPLANTAÇÃO DE UMA SUBESTAÇÃO .........................................................28 3.1.1 PLANEJAMENTO...........................................................................................28 3.1.2 PROJETO CIVIL .............................................................................................29 3.1.3 PROJETO ELETROMECÂNICO ...................................................................29 3.1.4 PROJETO ELÉTRICO.....................................................................................30 3.1.4.1 PROJETO DE AUTOMAÇÃO....................................................................30 3.1.5 PROCESSO DE COMPRA..............................................................................31
  • 10.
    x 3.1.6 COMISSIONAMENTO...................................................................................31 3.1.7 ENERGIZAÇÃO..............................................................................................32 3.2PROJETO ELETROMECÂNICO DA SE UFC CAMPUS DO PICI .....................32 3.2.1 PLANEJAMENTO DA SE CAMPUS DO PICI UFC.....................................32 3.2.2 ESCOLHA DO TERRENO..............................................................................32 3.2.3 MALHA DE TERRA.......................................................................................33 3.2.3.1 ESTUDO DA RESISTIVIDADE DO SOLO ..............................................34 3.2.3.1 CÁLCULO DA MALHA DE TERRA ........................................................34 3.2.3.2.1 CONDUTORES DA MALHA DE TERRA ................................................35 3.2.4 BLINDAGEM ..................................................................................................35 3.2.5 ESTRUTURAS ................................................................................................35 3.2.3.1 ENTRADA DE LINHA 72,5 kV .................................................................35 3.2.3.1 BARRAMENTO 72,5 kV ............................................................................36 3.2.3.1 CONEXÃO AT DO TRAFO 02T1..............................................................37 3.2.3.1 CONEXÃO BT DO TRAFO 02T1 ..............................................................37 3.2.3.1 BARRAMENTO DE 15 kV.........................................................................38 3.2.6 ILUMINAÇÃO DOS PÁTIOS E ACESSOS ..................................................39 3.2.7 ORÇAMENTO DA SE ....................................................................................39 CAPÍTULO 4 CONCLUSÃO E DESENVOLVIMENTOS FUTUROS ........................................................40 REFERÊNCIAS BIBLIOGRÁFICAS .....................................................................................50 APÊNDICE A – MEMORIAL DESCRITIVO DO PROJETO ELETROMECÂNICO DA SE UFC CAMPUS DO PICI APÊNDICE B – ORÇAMENTO DA SE UFC CAMPUS DO PICI APÊNDICE C – PLANTAS DO PROJETO ELETROMECÂNICO DA SE 69/13,8 kV UFC CAMPUS DO PICI ANEXO A – DETALHES DE INSTALAÇÃO E MONTAGEM DE EQUIPAMENTOS E MATERIAIS 72,5 – 15 kV
  • 11.
    xi LISTA DE FIGURAS Figura1.1: Divisão em módulos do PRODIST [5]...............................................................2 Figura 2.1: SE aérea ..............................................................................................................6 Figura 2.2: SE blindada [9] ...................................................................................................7 Figura 2.3: Canaleta aberta....................................................................................................8 Figura 2.4: Barramento simples [9].....................................................................................10 Figura 2.5: Barramento duplo [9]........................................................................................11 Figura 2.6: Barramento simples seccionado [9]..................................................................11 Figura 2.7: Barramento principal e de transferência [9]......................................................12 Figura 2.8: Barramento duplo com um disjuntor [9]...........................................................13 Figura 2.9: Barramento duplo com disjuntor duplo [9].......................................................14 Figura 2.10: Barramento com disjuntor e meio [9]...............................................................14 Figura 2.11: Barramento em anel [9] ....................................................................................15 Figura 2.12: Circuito magnético elementar de um transformador [7]...................................18 Figura 2.13: Circuito equivalente de um transformador real [7]...........................................19 Figura 2.14: Ligação das bobinas em triângulo [7]...............................................................20 Figura 2.15: Ligação das bobinas em estrela [7]...................................................................20 Figura 2.16: Ligação das bobinas em zigue-zague [7]..........................................................21 Figura 2.17: Componentes de montagem de um transformador [7]......................................22 Figura 2.18: Chave seccionadora de tripolar de comando silmultâneo [7]...........................24 Figura 2.19: Para-raios estação polimérico [9]......................................................................26 Figura 3.1: Terreno inicialmente proposto para a SE UFC CAMPUS DO PICI ................33 Figura 3.2: Terreno escolhido para a SE UFC CAMPUS DO PICI....................................33
  • 12.
    xii LISTA DE TABELAS Tabela1.1: Tensão de conexão conforme a característica da carga ......................................2 Tabela 3.1: Número de hastes de aterramento.....................................................................34
  • 13.
    1 CAPÍTULO 1 INTRODUÇÃO O crescimentoeconômico experimentado pelo Brasil nos últimos anos está confirmando a hipótese de que a expansão econômica influencia no acréscimo da demanda de energia elétrica. O aumento da renda das famílias e a oferta de crédito voltada ao consumidor interno fizeram com que o Operador Nacional do Sistema (ONS) registrasse um crescimento recorde de 8,3% na demanda por energia elétrica no ano de 2010 [1]. É importante, portanto, que o crescimento do Produto Interno Bruno (PIB) e da população sejam monitorados de perto pelos órgãos governamentais responsáveis pelo planejamento energético do país. A atenção deve ser dada a todos os níveis do sistema elétrico: geração, transmissão e distribuição, pois de nada vale um grande potencial de produção de energia elétrica se não for possível fazê-la chegar aos centros consumidores. O Brasil é um bom exemplo de integração do sistema elétrico. Com aproximadamente 73,1% da produção de energia elétrica gerada por mecanismos hidráulicos e estando os locais produtores distantes dos centros de cargas, existem grandes extensões de linhas de transmissão e instalações responsáveis por processar e distribuir a energia elétrica [2]. As Subestações (SEs) fazem parte desse conjunto de instalações que desempenham papel fundamental num sistema elétrico. Seja na geração, transmissão, distribuição e, até mesmo, em consumidores, as SEs são responsáveis por garantir maior confiabilidade, disponibilidade, segurança e economia no uso da energia elétrica. O projeto de uma Subestação (SE) de um consumidor acessante, deve estar de acordo com as normas, padrões e procedimentos do sistema de distribuição da acessada, além das normas da Associação Brasileira de Normas Técnicas (ABNT) [5]. Nesse contexto, a Agência Nacional de Energia Elétrica (ANEEL), autarquia vinculada ao Ministério de Minas e Energia (MME), elaborou os Procedimentos de Distribuição (PRODIST), que visam disciplinar o relacionamento entre as distribuidoras de energia elétrica e os demais agentes conectados aos sistemas de distribuição [3]. O Prodist é composto de oito módulos, sendo seis módulos técnicos e dois módulos integradores, conforme mostrado na Figura 1 [4].
  • 14.
    2 Figura 1.1 –Divisão em módulos do PRODIST [5]. O Módulo 3 do PRODIST – ACESSO AO SISTEMA DE DISTRIBUIÇÃO é de especial interesse dos acessantesi do sistema de distribuição, pois nele estão definidos, entre outros, os critérios técnicos e operacionais requeridos para conexão ao sistema de distribuição e as exigências para elaboração de projetos de instalações de conexão. Os critérios estabelecidos em [5] relacionam a potência instalada, o Montante de Uso do Sistema de Distribuição (MUSD)ii e a tensão de conexão, conforme descrito na Tabela 1.1: Tabela 1.1 – Tensão de conexão conforme a característica da carga. Nível de tensão Tensão nominal Características Baixa tensão (BT) 1 75 Média tensão (MT) 1 69 75 e 2500 Alta tensão (AT) 69 230 2500 1.1 - JUSTIFICATIVA De acordo com estudos previamente apresentados em [6], o sistema elétrico do Campus do Pici da Universidade Federal do Ceará (UFC) tem uma potência instalada de 9.150 kW, um MUSD de 3.500 kW e é atualmente atendido na tensão primária em 13,8 kV através da rede de Média Tensão (MT) da COELCE, justificando, portanto, a implantação de
  • 15.
    3 uma subestação 69/13,8kV no Campus do Pici. Os estudos realizados em [6] motivaram a elaboração do projeto eletromecânico da SE Campus do Pici UFC, apresentada neste trabalho. 1.2 - OBJETIVOS Esta monografia tem como objetivos apresentar a metodologia e o desenvolvimento do projeto eletromecânico para a SE Campus do Pici, 69/13,8 kV, potência inicial 5/6,25 MVA com previsão de expansão. Este projeto foi elaborado seguindo as normas e procedimentos da concessionária local. A metodologia para o trabalho inclui: - Levantamento dos dados em campo; - Reunião com os responsáveis pela rede elétrica do Campus do Pici para definição da localização do terreno da SE; - Análise das normas e critérios de projetos de SEs da Coelce e adequação ao projeto de SEs de consumidores; - Elaboração das plantas e do memorial descritivo que correspondem ao Projeto Eletromecânico da SE Campus do Pici UFC. 1.3 - ESTRUTURA DO TRABALHO Este trabalho é composto de quatro capítulos. No primeiro Capítulo, é dada uma introdução do sistema elétrico como um todo e sobre o PRODIST, conjunto de normas visando disciplinar o relacionamento entre os acessantes e os agentes distribuidores de energia elétrica. No segundo Capítulo, é feita uma breve explanação sobre os equipamentos que compõem uma subestação de energia elétrica. O principal objetivo desse Capítulo, no entanto, é mostrar as características técnicas que se deve levar em consideração na especificação desses equipamentos para a sua compra. O terceiro Capítulo é dedicado ao projeto de SEs. Nele, são descritos todos os processos que fazem parte da implantação de uma SE nova. Em seguida, é descrito o projeto eletromecânico da SE UFC – CAMPUS DO PICI.
  • 16.
    4 O quarto Capítuloé dedicado à conclusão do trabalho. Nele são expostos o que foi feito neste trabalho, o que não foi possível ser realizado e uma indicação para possíveis trabalhos futuros. i Acessantes: consumidor, central geradora, distribuidora ou agente importador ou exportador de energia, com instalações que se conectam ao sistema elétrico de distribuição, individualmente ou associados [5]. ii MUSD: potência ativa média calculada em intervalos de 15 (quinze) minutos, injetada ou requerida pelo sistema elétrico de distribuição pela geração ou carga, em kW [5].
  • 17.
    5 CAPÍTULO 2 SUBESTAÇÕES DEENERGIA ELÉTRICA 2.1 - CLASSIFICAÇÃO DAS SES As SEs estão localizadas em diferentes pontos do sistema de potência e são bastante diferentes em seus tamanhos, design, configuração e aparência. Porém, o esquema de uma SE é influenciado por alguns fatores comuns a todas elas como níveis de tensão das entradas e saídas de linhas, potência nominal a ser processada, área disponível e finalidade. Atualmente, existem diversas maneiras para se classificar uma SE, alguns deles são: • Classificação quanto ao nível de tensão; • Classificação quanto à configuração; • Classificação quanto à função. 2.1.1 - CLASSIFICAÇÃO QUANTO AO NÍVEL DE TENSÃO: Uma SE é denominada de acordo com o seu maior nível de tensão. Isto é, uma SE de abaixadora de 69 kV para 13,8 kV é dita uma SE classe de tensão de 72,5-15 kV ou SE de 69/13,8 kV. Na Tabela 2.1 é dada a classificação de SEs baseada em seus níveis de tensão. Tabela 2.1 – Classificação de SEs quanto ao nível de tensão [8] Descrição Faixa de tensão Baixa tensão Abaixo de 1kV Média tensão Entre 1kV e 33kV Alta tensão Entre 33kV e 110kV Extra alta tensão Entre 110kV e 400kV Ultra alta tensão Acima de 400kV 2.1.2 - CLASSIFICAÇÃO QUANTO À CONFIGURAÇÃO: Está relacionada quanto ao tipo de isolação de suas partes condutoras e proteção contra intempéries. As SEs são ditas aéreas quando estão dispostas ao tempo e sujeitas às variações climáticas. Quando uma SE apresenta a mesma configuração de uma SE aérea mas está protegida de variações do clima, ela é dita abrigada. Existem ainda as SEs que apresentam uma parte da sua estrutura ao tempo e a outra abrigada. Elas são chamadas de SEs semi-abrigadas. Nessas SEs, os equipamentos estão instalados em estruturas de concreto e
  • 18.
    6 podem ser vistosa olho nu, uma vez que as partes vivas da instalação estão abertas no ambiente. As SEs construídas em local abrigado e cujos equipamentos estão totalmente imersos em óleo ou gás isolante são conhecidas como SEs blindadas. Elas também são conhecidas como SEs compactas por ocuparem até 90% menos espaço que uma SE convencional [9]. Na Figura 2.1 é mostrada uma SE aérea e na Figura 2.2 é mostrada uma SE blindada. Figura 2.1 – SE aérea
  • 19.
    7 Figura 2.2 –SE blindada [9] 2.1.3 - CLASSIFICAÇÃO QUANTO À FUNÇÃO: Esta classificação baseia-se na finalidade a SE. As SEs de transmissão e de distribuição são SEs de transformação que têm a finalidade de transportar a energia elétrica da geração até as cargas. Para isso elas elevam e rebaixam o nível da tensão, respectivamente, visando a diminuição das perdas e a viabilidade da comercialização da energia elétrica. Uma SE de manobra é capaz de inserir ou retirar partes do sistema, sempre no mesmo nível de tensão. Se a finalidade de uma SE for a regulação da tensão por meio de equipamentos de compensação tais como reatores, capacitores, compensadores estáticos, etc, ela é dita reguladora. Existem ainda as SEs destinadas à transmissão de energia em corrente contínua, que retificam a tensão alternada. Elas são as SEs conversoras. É possível ainda que uma única SE possa incorporar alguma ou todas essas funções [9]. 2.2 - EQUIPAMENTOS DE UMA SE Em todas as SEs existem vários equipamentos, tanto no pátio de manobras como na casa de comandos. Cada equipamento tem seus requisitos de funcionalidades e a escolha deles depende de especificações técnicas como tensão nominal, potência nominal, tipo de SE, etc.
  • 20.
    8 Dentre os equipamentosinstalados no pátio de manobras estão os barramentos, disjuntores, isoladores, chaves seccionadoras, transformadores de força, TPs, TCs, para-raios, etc. Dependendo do nível de tensão e potência da SE, esses equipamentos podem ser instalados em estruturas de aço galvanizado ou concreto. Os equipamentos que ficam dentro da sala de comando são geralmente os cubículos blindados de média e baixa tensões, conhecidos como metal clad switchgear, painéis de medição, sala de baterias, geradores reservas, etc. Como se pode esperar, a sala de comandos geralmente possui vários compartimentos para abrigar, com segurança, os vários equipamentos que possam vir a ser instalado nela, dependendo do tamanho e da configuração da SE. A medição, a proteção e o controle na SE é feita por meio de cabos de controle de baixa tensão que são instalados em canaletas que ligam os equipamentos no pátio de manobras aos painéis na casa de comando. Na Figura 2.3 é mostrada uma canaleta contendo cabos de comando, proteção e controle da SED Trairí da Coelce. Figura 2.3 – Canaleta aberta Numa SE existem três tipos de circuitos. O primeiro é o circuito principal, por onde flui, em alta tensão, a potência das entradas de linhas para as saídas de linhas. O segundo é o
  • 21.
    9 circuito de mediçãoe proteção que saem pelos cabos conectados aos secundários dos TCs e TPs e alimentam, em baixa tensão, medidores e relés. O terceiro é o circuito auxiliar, que se destina a alimentação de serviços auxiliares na SE e à alimentação de retificadores e baterias que, por sua vez alimentam equipamentos de controle, proteção e comunicação em corrente contínua. 2.3 - BARRAMENTOS Barramentos são condutores reforçados situados das extremidades das SEs que possuem impedância desprezível e que agem como nós no sistema de potência. Por eles uma SE recebe e redistribui a potência recebida através de linhas de transmissão. A eles também podem ser conectados equipamentos como transformadores de força e disjuntores, por exemplo, dependendo de seu arranjo [9]. Existe uma grande variedade de configuração de barramentos cujo projeto varia de acordo com aspectos técnicos e econômicos. A configuração do barramento é uma característica muito importante de uma SE visto que ela afeta diretamente todo o seu esquema, a locação dos seus equipamentos e a sua operação sob condições normais e anormais e, principalmente, o seu custo [8]. Os principais tipos de barramentos encontrados nas SEs são: • Barramento simples; • Duplo barramento simples; • Barramento simples seccionado; • Barramento principal e de transferência; • Barramento duplo com um disjuntor; • Barramento duplo com disjuntor duplo; • Barramento duplo com disjuntor e meio; • Barramento em anel. O barramento simples é utilizado em SEs de pequena potência e tem a vantagem de ser o de mais fácil operação e de menor custo. Porém, qualquer falha ou manutenção nele ocasiona o desligamento das cargas alimentadas por ele. Por isso, ele é conhecido por ter baixa confiabilidade. A sua representação é mostrada na Figura 2.4. Se um consumidor possuir cargas prioritárias e não prioritárias, a configuração mais recomendada para ele é a de duplo barramento simples. Nela, as cargas prioritárias são
  • 22.
    10 conectadas a umabarra com geração e, na falta da alimentação principal, o gerador entra e é capaz de suprir as cargas prioritárias. Na Figura 2.5 é ilustrado esse barramento [9]. Na configuração de barramento simples seccionado, existe um disjuntor de interligação de barra ou chave seccionadora para interligar o barramento. Ela proporciona maior continuidade no fornecimento, pois permite que uma falha não desenergize a barra completamente, mas somente a parte referente ao lado em que ela ocorreu. Para maior confiabilidade geralmente existem alimentadores dos dois lados do barramento seccionado pelo disjuntor. Isso aumenta a complexidade dos sistemas de automação e proteção da SSE. Esse arranjo é encontrado em SEs de distribuição de pequeno porte. A sua ilustração é mostrada na Figura 2.6. Figura 2.4 – Barramento simples [9]
  • 23.
    11 Figura 2.5 –Duplo barramento simples [9] Figura 2.6 – Barramento simples seccionado [9] Quando a barra principal é ligada a uma barra auxiliar por meio de um disjuntor de transferência, tem-se a configuração de barramento principal e de transferência. O disjuntor de transferência garante a proteção de um bay da SE quando o disjuntor associado a esse bay é retirado de serviço para manutenção. Para isso, são instaladas chaves de by-pass no
  • 24.
    12 bay do disjuntora ser substituído, possibilitando, assim, a sua retirada de serviço sem a necessidade de interrupção do fluxo de potência. Nesse arranjo, o disjuntor de transferência pode substituir qualquer um dos disjuntores conectados ao barramento principal e é o único conectado diretamente às duas barras. A transferência da proteção pode ser realizada com o auxílio de relés biestáveis que possibilitam o direcionamento do trip para o disjuntor relacionado ao bay (na posição normal, N), para o disjuntor de transferência (na posição transferido, T) ou para ambos (posição em transferência, ET). O esquema de automação e proteção nesse caso é ainda mais complexo e pode ser ainda mais quando se tem o barramento principal seccionado, como no caso de SEs de distribuição de grande porte. É importante notar que uma falha na barra principal ocasiona o desligamento das cargas do barramento. Esse arranjo também é mais caro que os mencionados anteriormente, pois adiciona um disjuntor sobressalente aos equipamentos da SE. Este arranjo está mostrado na Figura 2.7 [9]. Figura 2.7 – Barramento principal e de transferência [9] Em SEs de grande porte e importância é muito utilizado o esquema de barramento duplo com um disjuntor, que permite uma maior flexibilidade de manobras que o esquema de barramento principal e de transferência. Neste arranjo, as linhas podem ser conectadas a qualquer um dos dois barramentos e, por isso, uma manutenção em um barramento não significa no desligamento da SE. Porém, o seu uso é restringido devido ao seu preço, pois além do disjuntor sobressalente usa-se o dobro de chaves seccionadoras nessa configuração. Na figura 2.8 é mostrada a sua configuração.
  • 25.
    13 Figura 2.8 –Barramento duplo com um disjuntor [9] Na configuração de barramento duplo com disjuntor duplo existem dois disjuntores e quatro chaves seccionadoras, por circuito, entre as duas barras, conforme mostrado na Figura 2.9. Apesar da alta flexibilidade operacional e da confiabilidade, esse esquema é bastante caro e é geralmente utilizado em SEs de alta potência em extra alta tensão [9][8]. Existe ainda uma configuração que usa três disjuntores para cada dois circuitos, como mostrado na Figura 2.10. Daí ela é chamada de barramento de disjuntor e meio. Este esquema é o mais flexível em sua operação e a sua confiabilidade também é a mais alta. Em operação normal, todos os disjuntores estão fechados e ambas as barras estão energizadas. Para retirar um dos alimentadores, é necessário abrir dois disjuntores e qualquer uma das barras pode ser retirada de serviço sem a perda de qualquer alimentador. Este esquema é muito utilizado em SEs de transmissão. Se comparado com o barramento duplo com um disjuntor ele possui meio disjuntor a mais e, portanto é mais caro. Porém, se comparado com barramento duplo com disjuntor duplo, ele possui meio disjuntor a menos e, portanto, é mais barato [8]. No barramento em anel, a disposição dos equipamentos de manobra forma um circuito fechado, como mostrado na Figura 2.11. Em operação normal todos os disjuntores estão fechados e durante uma falta dois disjuntores associados à barra são abertos. Durante uma manutenção em um disjuntor, o anel é aberto mas todos os circuitos alimentadores continuam em serviço. O barramento em anel é viável pois requere somente um disjuntor por circuito e a sua confiabilidade, flexibilidade e simplicidade de operação são altas [8].
  • 26.
    14 Figura 2.9 –Barramento duplo com disjuntor duplo [9] Figura 2.10 – Barramento com disjuntor e meio [9]
  • 27.
    15 Figura 2.11 –Barramento em anel [9] 2.4 - DISJUNTORES São chaves automáticas capazes de interromper, ou estabelecer, correntes de operação normal ou de falta em um circuito à jusante. Contudo, sua principal função é a interrupção de correntes de curto-circuito no menor tempo possível. Para isso, eles devem ser associados a relés de proteção, os quais, alimentados por sensores que lêem as correntes nas fases do circuito, enviam-lhe sinais ao seu mecanismo de acionamento e ele abre seus contatos. Quando se separa os contatos de um disjuntor por meio de seu sistema de acionamento, há a formação do arco elétrico, que se dá pela ruptura da rigidez dielétrica do meio que preenche o espaço entre os contatos até então fechados. Ele forma um canal condutor num meio fortemente ionizado e eleva significativamente a temperatura em seu entorno. Esse canal condutor possibilita a continuidade do circuito até que a corrente atinja seu valor nulo no ciclo senoidal. Mas, se o meio continuar ionizado no ciclo seguinte, existe a possibilidade de formação de um novo arco, o que pode ser desastroso para o sistema. Portanto, juntamente com a abertura do contato faz-se necessária a substituição do meio no qual ele está imerso. Outro aspecto importante a se levar em consideração é que a interrupção abrupta da corrente em um circuito pode levar ao aparecimento de sobretensões no circuito como forma de liberação da energia armazenada no instante da interrupção. Os disjuntores são classificados com base no meio usado para extinção do arco. São eles: -Ar comprimido;
  • 28.
    16 -Óleo; -Gás SF6; -Vácuo. O sistemade acionamento do disjuntor é o mecanismo no qual é armazenada a energia para requerida para a operação mecânica do disjuntor e comandada a sua operação. Quando é possível realizar operações por fase, diz-se que o acionamento do disjuntor é monopolar. Por outro lado quando somente é possível a abertura e o fechamento das três fases conjuntamente, o acionamento é conhecido como tripolar. Existem vários tipos de acionamento e o principio fundamental de todos eles é um circuito de comando dando o sinal para a liberação da energia armazenada com o intuito de mover o contato móvel do disjuntor. Os principais sistemas de acionamento dos disjuntores são: -por solenóide; -por mola; -por ar comprimido; -hidráulico. 2.4.1 - ESPECIFICAÇÃO DE DISJUNTORES Na aquisição de disjuntores, é necessário que se especifique determinadas grandezas e características, conforme apresentadas a seguir: Tensão nominal: é o valor eficaz da tensão para a qual o disjuntor foi fabricado e todos os outros valores nominais do disjuntor são referidos a ela. Corrente nominal: é a correte que o disjuntor pode conduzir indefinidamente sem que ocorra a elevação de temperatura de suas partes além do estabelecido nas normas. Corrente de interrupção simétrica: é o valor eficaz da componente alternada da corrente de curto-circuito. Corrente de interrupção assimétrica: é o valor eficaz da corrente de curto-circuito formado pela superposição da componente contínua da corrente de curto-circuito com a componente simétrica da corrente de curto-circuito. Ela é a verdadeira corrente de curto- circuito [Geraldo]. Potência de interrupção: em disjuntores de grande porte, a capacidade disruptiva da câmara de extinção do arco é dada em MVA e definida como a potência de interrupção. Ela é dada em função da tensão eficaz de linha no local do defeito e da corrente de curto-circuito.
  • 29.
    17 Para o sistemade distribuição, a corrente de curto-circuito simétrica é a corrente de curto- circuito usada para o cálculo da potência de interrupção devido à sua localização distante dos geradores. Frequência nominal: é a frequência da tensão de geração do sistema elétrico e para a qual o disjuntor foi projetado. Tempo de interrupção: é o tempo decorrido desde o comando de abertura do disjuntor até a completa extinção do arco elétrico. Tensão suportável de impulso: é o valor de impulso de tensão, seja devido a descargas atmosféricas ou a manobras na rede, que um disjuntor deve suportar, conforme as condições previstas em ensaio. Tipo de construção: a forma construtiva de um disjuntor pode ser aberta ou blindada. Tipo de comando: refere-se ao comando do sistema de acionamento do disjuntor, que pode ser manual ou motorizado. 2.5 - TRANSFORMADORES DE FORÇA No sistema elétrico, de maneira geral, a tensão na qual o usuário final conecta os seus equipamentos não é a mesma que é gerada numa usina de geração. Os transformadores de força são necessários para a transferência de potência de um nível de tensão para outro. Na Figura 2.6 está representado o circuito magnético mais elementar de um transformador. Nela, vê-se um transformador constituído por dois enrolamentos: primário e secundário, magneticamente acoplados. Nesse transformador ideal, tem-se que a relação entre a tensão no primário (V1) e a tensão no secundário (V2) tem o mesmo valor da relação entre o número de espiras do primário (N1) e o número de espiras do secundário (N2) e o inverso do valor da relação entre a corrente no primário (I1) e a corrente no secundário (I2), conforme a Equação 2.1. 1 1 2 2 2 1 V N I V N I = = . (2.1) Os transformadores, quando utilizados para elevar a tensão de entrada em seu primário, são chamados de elevadores e têm grande aplicação em subestações próximas às usinas de geração. Por outro lado, os transformadores mais comumente usados são os abaixadores, que rebaixam o nível da tensão conectada ao seu primário.
  • 30.
    18 Em um transformadorreal existem perdas e elas são representadas no circuito elétrico equivalente de um transformador da Figura 2.13. Nela, R1 representa a resistência do enrolamento primário e representa a reatância de dispersão do primário, responsável pelo aparecimento de uma tensão induzida que se soma à produzida pelo fluxo mútuo e varia linearmente com a corrente Î1 de primário. Além de magnetizar o núcleo, a corrente de primário deve fornecer corrente para a carga conectada ao secundário do transformador. Portanto, é conveniente decompor a corrente de primário em duas componentes: de excitação e de carga. A componente de excitação, Î, é não senoidal e produz o fluxo mútuo resultante e a componente de carga, Î , é a componente da corrente de que contrabalança a força magnetomotriz da corrente de secundário, Î . Também, matematicamente, a componente de carga da corrente de primário é a corrente de secundário, Î2, referida ao primário como no transformador ideal. A corrente de excitação, Î, pode, ainda, ser decomposta em uma componente de perdas no núcleo, Îc, que flui pela resistência de magnetização e uma componente de magnetização, Îm. que flui pela reatância de magnetização. Elas formam o ramo de excitação, mostrado na Figura 2.13. Ainda nessa figura é possível notar a presença da resistência de secundário referida ao primário, , e da reatância de dispersão do secundário referida ao primário, [Fitzgerald]. Figura 2.12 – Circuito magnético elementar de um transformador [7]
  • 31.
    19 Figura 2.13 –Circuito equivalente de um transformador real [7] Os transformadores de força mais comumente encontrados são os monofásicos e os trifásicos. Os transformadores monofásicos são individualmente mais baratos e podem ser usados em conjunto para formar um banco trifásico de transformadores, dando maior confiabilidade ao sistema por ele alimentado. Os transformadores trifásicos são os mais utilizados no sistema de potência. Em ambos os casos, o acesso aos terminais das bobinas é feito por meio das buchas de primário e secundário segundo as características elétricas do transformador. Um transformador trifásico pode ter os seus enrolamentos ligados de três maneiras conforme seja mais adequado para a sua aplicação: triângulo (ou delta), Figura 2.14, estrela, Figura 2.15 e zigue-zague, Figura 2.16. Na ligação triângulo, a tensão de linha é medida entre dois terminais do transformador e a corrente que entra em um terminal é a corrente de linha. A corrente de fase circula nas bobinas. Na ligação estrela, a tensão medida entre dois terminais do transformador é a tensão de linha e a corrente que entra em um terminal é a corrente de linha. A tensão medida entre o ponto comum e um terminal é chamada tensão de fase. Na ligação zigue-zague tem-se a atenuação dos harmônicos de 3a ordem e a possibilidade de se obter três tensões de utilização. Porém, transformadores com esse tipo de ligação têm um custo mais elevado que os transformadores com as ligações anteriormente mencionadas.
  • 32.
    20 Figura 2.14 –Ligação das bobinas em triângulo [7] Figura 2.15 – Ligação das bobinas em estrela [7]
  • 33.
    21 Figura 2.15 –Ligação das bobinas em zigue-zague [7] Os transformadores podem ser classificados quanto ao meio isolante de seus enrolamentos. Normalmente, os enrolamentos dos transformadores vêm imersos em líquido isolante como o óleo mineral, por exemplo. A parte do transformador que contém o líquido isolante é chamada de tanque. Porém, em algumas aplicações, as normas proíbem a utilização desse tipo de transformador e a alternativa é a utilização de um transformador a seco. Esses transformadores possuem uma estrutura semelhante à do transformador a líquido isolante, porém, com um tratamento diferente dos seus enrolamentos. Outra diferença é a necessidade de se deixar a canais de ventilação entre o núcleo e o enrolamento secundário e, também, entre o enrolamento secundário e o primário. Duas grandezas que são de extrema importância e de constante monitoramento na operação de um transformador são a temperatura e a pressão. As temperaturas do óleo e do enrolamento são medidas por sensores. Uma mudança rápida de pressão independente de ele estar atuando na pressão de regime normal ocasiona a atuação do relé de súbita pressão, indicando que há um defeito interno no transformador. Já a válvula de alívio de pressão serve para permitir a descarga do óleo quando a pressão interna no tanque do transformador atingir um valor acima do especificado. Ela deixa o óleo expandir do tanque para tanque de expansão de óleo e tem uma ação extremamente rápida. Quando há a queima de material isolante dentro do tanque de óleo do transformador, ocorre a liberação de gases que devem ser detectados pelo relé Buchholz e, assim o disjuntor de proteção deverá atuar. Na Figura 2.16 são indicados os diversos componentes de montagem de um transformador de distribuição.
  • 34.
    22 Figura 2.16 –Componente de montagem de um transformador [7] O calor gerado pelas perdas ôhmicas nos enrolamentos, pela histerese e por correntes parasitas no núcleo do transformador é levado ao meio externo pelo sistema de resfriamento.
  • 35.
    23 Nele, o caloré transferido ao meio de resfriamento interno, óleo mineral, por exemplo, e dele para radiadores e ao meio ambiente. Os processos de transferência de calor se dão por condução, radiação e convecção, sendo o mais importante deles a convecção. No resfriamento dos transformadores a convecção pode ser natural ou forcada. Na convecção forçada são utilizados ventiladores que aceleram o ar quente substituindo-as por ar frio que é usado para o resfriamento dos radiadores do transformador. Este processo acarreta um ganho extra de potência nominal do transformador fazendo com que ele possa ser operado continuamente a uma potência maior do que ele poderia sem a ventilação forçada. 2.5.1 - ESPECIFICAÇÃO DE TRANSFORMADORES Na aquisição de transformadores, são necessários que se especifiquem determinadas grandezas e características, conforme apresentadas a seguir: Tensão primária: é a tensão eficaz entre fases do primário do transformador. Tensão secundária: são as tensões eficazes entre fases e entre fases e neutro do transformador. Potência nominal: é a potência aparente que serve de base para o projeto do transformador. Ela determina a corrente nominal que deve circular no transformador sob a tensão nominal. Deslocamento angular: representa a diferença entre os fasores de tensão dos terminais do transformador e o ponto neutro (real ou ideal), quando um sistema de sequência positiva é aplicado na ordem numérica dos terminais do transformador, admitindo-se que os fasores girem no sentido anti-horário. Número de fases: representa o número de fases da tensão de alimentação do transformador. Tensão suportável de impulso: é o valor de impulso de tensão, seja devido a descargas atmosféricas ou a manobras na rede, que um transformador deve suportar, conforme as condições previstas em ensaio. Impedância percentual: é a impedância do transformador em percentagem da tensão de curto-circuito nos terminais do primário. Acessórios desejados: ventilação forçada, comutador de tape em carga, etc.
  • 36.
    24 2.6 - CHAVESSECCIONADORAS As chaves seccionadoras são dispositivos de manobra que, na posição aberta, garantem a distância de isolamento requerida pelo nível de tensão do circuito. Elas são instaladas de maneira a possibilitar a isolação de um circuito da SE para manutenção. As chaves não devem ser operadas em carga, mas sempre em conjunto com um disjuntor, isto é, só se deve abrir uma chave depois de o seu disjuntor correspondente ser aberto e ela sempre deve ser fechada antes do fechamento desse disjuntor. Na Figura 2.17 é ilustrada uma chave seccionadora tripolar de comando simultâneo. Figura 2.17 – Chave seccionadora tripolar de comando simultâneo [7] O circuito principal de uma chave seccionadora é constituído das partes condutoras que se inserem no circuito em que a chave opera. A parte da chave seccionadora associada exclusivamente a um caminho condutor, excluídos o suporte isolante, a base e todos os elementos de operação simultânea, é conhecida como pólo. A chave seccionadora da Figura 2.17 é tripolar, pois possui três dessas partes. Os terminais da chave seccionadora fazem a ligação da chave com o circuito no qual ela está inserida e os seus contatos são as peças metálicas responsáveis por assegurar a continuidade do circuito quando se tocam. Os contatos da chave são abertos ou fechados por meio do dispositivo de operação, que pode ser manual ou motorizado. Após a realização de uma manobra, o dispositivo de bloqueio indica ao operador a posição dos contatos da chave e a trava para evitar uma operação acidental [7]. As chaves de aterramento são conectadas entre as linhas de transmissão e a terra e quando a linha é retirada de serviço para manutenção, essas chaves, que são normalmente abertas, são fechadas para que seja descarregada a tensão armazenada na capacitância formada pela linha de transmissão e a terra [8]. As chaves seccionadoras podem apresentar as seguintes configurações [7]:
  • 37.
    25 • Seccionadores deabertura lateral singela; • Seccionadores de abertura central; • Seccionadores de dupla abertura central; • Seccionadores de abertura vertical; • Seccionadores pantográficos. 2.6.1 - ESPECIFICAÇÃO DE CHAVES SECCIONADORAS A especificação de chaves seccionadoras requer a indicação dos seguintes itens [7]: • Tensão nominal; • Corrente nominal; • Frequência nominal; • Corrente nominal suportável de curta duração; • Duração da corrente suportável de curto-circuito; • Valor de crista nominal da corrente suportável; • Tensão de operação dos circuitos auxiliares; • Tensão nominal dos dispositivos de comando. 2.7 - PÁRA-RAIOS Os para-raios são equipamentos responsáveis por reduzir o nível de sobretensão, seja ela por descargas atmosféricas ou por manobras, a valores compatíveis com a classe de isolação dos equipamentos que ele protege. Eles podem ser utilizados na proteção de vários equipamentos de uma SE ou simplesmente de um transformador de distribuição em um poste. Em SEs, eles normalmente estão instalados nas entradas e saídas de linhas, podendo, também, conforme estudo para avaliação da necessidade, ser instalados nos barramentos mais próximos dos transformadores. Segundo a NBR-5424, os para-raios são divididos em classes. A classe estação subdivide-se em serviço leve e pesado. Para serviço leve existem para-raios de 20kA, 15kA e 10kA. Para serviço pesado existem para-raios de 10kA. A classe distribuição possui para- raios de 5kA séries A e B. Por fim, a classe secundária possui para-raios de 1,5kV.
  • 38.
    26 Os para-raios de10kA são aplicados em SEs acima de 69kV e asseguram melhores níveis de proteção. Em seguida, vêm os para-raios de 5kA série A que são aplicados em sistemas de transmissão abaixo de 69kV e depois os para-raios de 5kA série B que são usados na proteção de transformadores de distribuição. Os para-raios da classe secundária têm pouca aplicação em instalações industriais e são mais comumente usados em entradas de consumidores de baixa tensão. Na Figura 2.18 é mostrado um para-raios estação polimérico. Figura 2.18 – Para-raios estação polimérico [9] 2.7.1 - ESPECIFICAÇÃO DE PARA-RAIOS Na compra de um para-raios devem ser especificados os seguintes dados [7]: • Tensão nominal; • Tensão disruptiva máxima de impulso atmosférico; • Tensão residual máxima sob corrente de descarga nominal; • Tensão disruptiva à frequência industrial; • Tensão disruptiva máxima por surto de manobra; • Corrente de descarga nominal; • Classe; • Tipo de resistor não-linear.
  • 39.
    27 2.8 - CONCLUSÃO NesteCapítulo as SEs foram classificadas de diferentes maneiras visando a melhor compreensão de suas aplicações e o entendimento das peculiaridades de cada tipo de SE. Foram apresentadas diferentes configurações de barramentos e descritas suas principais funcionalidades. Essa abordagem é importante, pois a definição do tipo de barramento tem impacto tanto na operação da SE quanto no seu custo de implantação. Por fim, foram apresentados os principais equipamentos de uma SE e suas especificações de compra.
  • 40.
    28 CAPÍTULO 3 PROJETO DESUBESTAÇÕES 3.1 - INTRODUÇÃO O processo de implantação de uma SE é constituído dos seguintes subprocessos: - Planejamento; - Projeto Civil; - Projeto Eletromecânico; - Projeto Elétrico; - Processo de Compra; - Comissionamento; - Energização. Esses subprocessos não são necessariamente sequenciais, uma vez que alguns deles necessitam de entradas que são fornecidas por outros processos. 3.1.1 - PLANEJAMENTO A concepção de uma SE começa com o seu planejamento. Para isso, deve ser feito um estudo extremamente criterioso sobre a carga que ela deve alimentar, bem como a projeção do seu crescimento. Além do conhecimento profundo da carga, também é importante conhecer o sistema, pois uma SE pode, ao mesmo tempo, suprir uma carga e funcionar como uma carga para SEs a montante. O estudo do fluxo de potência é o mais corriqueiro método para solução da rede elétrica em regime permanente de operação e geração. Nele, através de dados de entrada, como geração e consumo de potência ativa e reativa em determinadas barras do sistema, são desenvolvidos métodos matemáticos, visando à convergência no cálculo do módulo e do
  • 41.
    29 ângulo das tensõesem algumas barras do sistema. Assim, pode-se determinar o fluxo de potência ativa e reativa nos elementos da rede. Atualmente, o estudo do fluxo de potência é uma das ferramentas iniciais para estudos de curto-circuito e de estabilidade. Também existe o estudo do fluxo ótimo de potência, que fornece a melhor configuração da rede visando minimizar os custos de operação e reduzir as perdas [16]. Além do estudo para análise do sistema de potência, uma análise sócio-econômica também deve ser realizada para um bom planejamento de qualquer sistema elétrico, seja ele de uma concessionária de distribuição de energia elétrica, de uma indústria e, até mesmo, de uma residência. Fatores como crescimento da população de uma dada região, incentivos governamentais para instalação de novas indústrias ou aumento da produção pelo recebimento de novas encomendas de produtos, podem impactar no consumo de energia desses subsistemas e alterar a forma como eles são supridos. Neste sentido, no planejamento da SE considera-se o crescimento vegetativo da carga. 3.1.2 - PROJETO CIVIL O Projeto Civil de uma SE parte de estudos da situação do terreno reservado para a construção da SE e determina, em suas plantas e memoriais, a necessidade de realização de obras preliminares como raspagem e terraplanagem, por exemplo. Uma vez especificada a condição do terreno para o início das obras de construção da SE, o Projeto Civil segue intimamente ligado ao Projeto Eletromecânico da SE, pois a disposição de equipamentos, postes, acessos, canaletas e a posição de entradas e saídas de linhas podem influenciar diretamente nos materiais e na forma como serão projetadas as drenagens e pavimentações, edificações, bases e fundações para postes e equipamentos e instalações hidro-sanitárias. 3.1.3 - PROJETO ELETROMECÂNICO O ponto de partida do Projeto Eletromecânico é o Diagrama Unifilar da SE. Nele, é definido o esquema da SE e apontados os seus equipamentos. Então se dá a definição das
  • 42.
    30 plantas baixas comlocalização das estruturas, bases e acessos para instalação dos equipamentos, proporcionando a elaboração da planta denominada arranjo físico. Nele também são dimensionadas e posicionadas as canaletas e eletrodutos de interligação dos equipamentos à casa de comando. A medição da resistividade do solo, o cálculo e elaboração da planta malha de terra, o aterramento de equipamentos, cercas e portões, o dimensionamento dos condutores do circuito principal da SE e a blindagem de proteção contra descargas atmosféricas também fazem parte do escopo do projeto eletromecânico. 3.1.4 - PROJETO ELÉTRICO O Projeto Elétrico parte do diagrama unifilar de proteção e medição e detalha a filosofia das proteções e controle dos equipamentos da SE. A interligação entre os transformadores de instrumentos e os relés de proteção é explicitada nesse projeto, bem como o dimensionamento dos cabos necessários para essas ligações. Esses dados geralmente constam também nos diagramas trifilares. Os diagramas funcionais do Projeto Elétrico mostram as fiações destinadas à supervisão dos equipamentos, seus comandos e eventuais trips. Também constam no Projeto Elétrico os detalhes de instalação dos equipamentos nos quadros de comando localizados na casa de comando. 3.1.4.1 - PROJETO DE AUTOMAÇÃO Conceitualmente, a automação do projeto elétrico é objeto de um projeto a parte. Na prática, contudo, não se faz distinção entre um e outro, tamanha foi a incorporação da automação pelos projetistas responsáveis pelo projeto elétrico. O objetivo do Projeto de Automação é a economia nas funcionalidades do Projeto Elétrico sem a perda de sua confiabilidade. Ele utiliza equipamentos microprocessados para implementar as funções de proteção e controle em uma SE. Com o aumento da velocidade de comunicação entre equipamentos, a queda no seu custo de aquisição e a consolidação de um protocolo de
  • 43.
    31 comunicação padrão entreeles, há uma tendência de incorporação do Projeto de Automação pelo Projeto Elétrico em projetos de SEs de alta tensão. O sistema de automação de SEs tem sua arquitetura formada em quatro níveis, são eles: 0, 1, 2 e 3. No nível 0, o comando dos equipamentos se faz no quadro de comando do próprio equipamento localizado no pátio da SE. No nível 1, existe uma unidade de controle de posição (UCP), microprocessada, por vão e de operação em tempo real. A UCP possui todas as funções relativas às operações dos equipamentos a ela relacionados. O nível 2 realiza todas as funções de monitoramento e controle da SE, além de se comunicar com os níveis 1 e 3. Ele é composto por uma unidade de controle da SE (UCS), um PC industrial que faz a interface homem-máquina (IHM) e a rede local. O nível 3 permite a observação, a operação e a administração da SE externamente à própria SE. O local de onde se controla a SE nesse nível é comumente chamado de centro de controle do sistema (CCS) [11]. Normalmente, a automação de SEs industriais vai até o nível 2, ficando o nível 3 para SEs de transmissão e distribuição de energia elétrica. 3.1.5 - PROCESSO DE COMPRA Uma vez determinados dados de alimentação da SE como tensão de entrada e níveis dos curtos-circuitos no ponto de entrega, é possível fazer a especificação dos equipamentos a serem instalados nela. Porém, como já mencionado anteriormente, esse não é um processo isolado, visto que outros fatores, como, por exemplo, o layout da SE, também influenciam na especificação desses equipamentos. 3.1.6 - COMISSIONAMENTO O comissionamento é a etapa de testes após a construção da SE. Nele é verificado se a SE foi construída conforme o projeto aprovado pelo contratante e se o mesmo segue todas as suas especificações de qualidade. São também efetuados procedimentos operacionais padrões para a verificação do desempenho dos equipamentos de manobra, proteção e medição. As obras civis também devem ser observadas.
  • 44.
    32 3.1.7 - ENERGIZAÇÃO Depoisde realizados, na fase de comissionamento, todos os testes necessários para garantir a confiabilidade e a segurança da instalação, se atender a todos os requisitos normativos, a SE será liberada para a energização. Nessa etapa, o corpo técnico responsável pelo projeto, construção, fiscalização, operação e manutenção da SE deve estar presente. 3.2 - PROJETO ELETROMECÂNICO DA SE CAMPUS DO PICI UFC 3.2.1 - PLANEJAMENTO DA SE CAMPUS DO PICI UFC Nesta etapa foi solicitada uma Avaliação de Viabilidade Técnica (AVT) na concessionária e definidas as principais características da instalação: SE 69/13,8 kV aérea, potência inicial 5/6,25 MVA com previsão de expansão e três alimentadores de 13,8 kV. Foi decidido que, num primeiro momento, seria mais interessante a realização de um projeto para a SE aérea em detrimento da SE abrigada, visto que normalmente se opta por esse tipo quando se tem problemas de pouca área disponível para a construção da SE. A partir das definições acima foi elaborado o Diagrama Unifilar que serviu como base para elaboração do projeto eletromecânico da SE, mostrado na planta UFC.00, apêndice C. 3.2.2 - ESCOLHA DO TERRENO Na escolha do terreno para a localização de uma SE foi levado em consideração a sua distância para o centro de cargas, bem como as suas vias de acesso e a infra-estrutura disponível, conforme [11]. Inicialmente, pensou-se na realização do projeto no terreno da antiga subestação da COELCE localizada dentro do Campus do Pici, mostrado na Figura 3.1. Porém, a existência de algumas árvores e de um poço que serve de abastecimento de água para a comunidade,
  • 45.
    33 além da passagemdo circuito alimentador de 13,8 kV, limitaram a área necessária para o projeto de uma SE desse porte e levaram à escolha de uma área de 80x80 m, que é o padrão terreno de uma SE de pequeno porte da COELCE. O terreno escolhido está mostrado na Figura 3.2. Figura 3.1 – Terreno inicialmente proposto para a SE UFC CAMPUS DO PICI Figura 3.2 – Terreno escolhido para a SE UFC CAMPUS DO PICI
  • 46.
    34 3.2.3 - MALHADE TERRA A malha de terra deverá ser enterrada 50 cm abaixo do nível da terraplanagem e suas interconexões, conexões às hastes de aterramento e aos trilhos dos transformadores deverão ser feitas com solda exotérmica [11]. As conexões de equipamentos, estruturas e demais partes metálicas devem ser do tipo aparafusadas. Nos aterramentos da SE deverão ser usadas hastes de aterramento de aço cobreado. As hastes devem ser dispostas conforme a Tabela 3.1 abaixo: Tabela 3.1 – Número de hastes de aterramento Descrição Número de hastes Aterramento do neutro do transformador de potência 01 Aterramento do neutro do transformador de serviços auxiliares 01 Aterramento do conjunto de cada três para- raios 01 Aterramento dos ângulos agudos nos cantos das malhas 03 ou 04 Aterramento dos cantos da casa de comando 04, sendo uma em cada canto Além disso, deverão ser postas hastes de 12 em 12 metros na periferia da malha de terra e uma caixa de inspeção para medição da resistência da malha de terra em cada pátio da SE, conforme mostrado na planta UFC.01.06, conforme apêndice C. 3.2.3.1 - ESTUDO DA RESISTIVIDADE DO SOLO O sistema de aterramento deverá ser calculado com base no estudo preliminar da resistividade do solo. A medição da resistividade deverá ser efetuada empregando o método de Werner, segundo a NBR-7117 [11]. Para que se atinja uma maior precisão nos cálculos da malha fundamentados nas medições da resistividade do solo, é importante que elas sejam feitas após a terraplanagem. 3.2.3.2 - CÁLCULO DA MALHA DE TERRA
  • 47.
    35 A área definidapara o cálculo da malha de terra está mostrada na planta UFC.01.06, apêndice C, e o seu cálculo, segundo [10], deverá ser feito considerando-se os estudos definidos no item 3.2.3.1 e o valor da máxima corrente de curto-circuito fase-terra presumida do lado da tensão mais baixa, disponível em [6]. 3.2.3.2.1 - CONDUTORES DA MALHA DE TERRA Foram realizados estudos históricos dos cálculos de malha de terra das SEs da COELCE e os resultados apontaram para a padronização dos condutores da malha de 70 mm2 , 95 mm2 e 120 mm2 . O aterramento de estruturas, equipamentos, portões e demais partes metálicas deve ser feito através de cabo de cobre nu de 70 mm2 [11]. 3.2.4 - BLINDAGEM A proteção contra descargas atmosféricas é feita por hastes para-raios montadas sobre as estruturas, conforme mostram as plantas UFC.06 e UFC.07, apêndice C, para os pátios de 72,5 kV e 15 kV, respectivamente. No critério de distribuição das hastes foi considerado um ângulo de proteção e cobertura de 30°, conforme [11]. O aterramento das hastes para-raios deverá ser feito na malha de terra por meio de solda exotérmica. 3.2.5 - ESTRUTURAS No projeto da SE UFC Campus do Pici, foram utilizadas estruturas de concreto armado padronizadas em [12] e [14]. 3.2.5.1 - ENTRADA DE LINHA Na EL de 69 kV foi projetado um pórtico com postes tipo B-1,5, de 12 m e engastamento de 1,80 m, e, para a fixação dos cabos de liga Al nu de 315mm², foi
  • 48.
    36 especificada uma cadeiade ancoragem com alça preformada presa em uma viga Tipo H/I de 230x310x7100 mm com montagem horizontal. Essa viga deverá ser suportada por dois anéis triplos tipo B-3 de dimensão interna 230x285 mm. Ainda nesse pórtico, foi projetada a instalação de para-raios tipo estação fixados em uma viga Tipo H/I de 230x310x7100 mm com montagem horizontal suportada por dois anéis triplos tipo B-6 de abertura interna 290x370 mm. O projeto dessa estrutura pode ser visto nas plantas UFC.04. O conjunto de medição para faturamento, fornecido pela COELCE, formado por dois TCs e três TPs, conforme indicado em [10], será instalado sobre postes do tipo B, de 4,5 m de comprimento e engastamento de 2 m, e fixados em suportes Capitel tipo B-1 de abertura interna 230x200 mm. O projeto dessa estrutura pode ser visto nas plantas UFC.04. Para a instalação da chave seccionadora tripolar com lâmina de terra foi projetada uma estrutura formada por dois postes do tipo B, de 4,5 m de comprimento e engastamento de 2 m, dois suportes Jabaquara tipo B-3, modelo LT, de 1.630 mm e duas vigas tipo Maciça de 120x170x4600 mm, com montagem vertical. Os TCs de proteção que serão associados ao relé do disjuntor 12L1 serão instalados em uma estrutura formada por três postes do tipo B, de 4,5 m de comprimento e engastamento de 2 m e suportes Capitel tipo B-1 de abertura interna 230x200 mm. 3.2.5.2 - BARRAMENTO 72,5 kV O barramento de 72,5 kV, formado pelo mesmo cabo da EL de 72,5 kV, liga Al nu de 315mm², será preso nas duas extremidades por duas cadeias de ancoragem com alça preformada. As cadeias de ancoragem serão fixadas em duas vigas Tipo H/I de 230x310x7100 mm com montagem horizontal, sustentadas por quatro anéis triplos tipo B-3 de dimensão interna 230x285 mm em postes tipo B de 10,5 m e engastamento de 2,1 m, que formam o pórtico para o barramento de 72,5 kV. Nesse pórtico do lado do disjuntor de 72,5 kV, foram projetados duas colunas de isoladores de 72,5 kV, uma fixada pelo topo e outra fixada pela base, para diminuir a tração suportada pelo cabo devido à distância entre a bucha de saída do disjuntor de 72,5 kV e o ponto de conexão ao barramento de 72,5 kV. Estas colunas estão fixadas em uma viga Tipo H/I de 230x310x7100 mm com montagem horizontal, sustentada por dois anéis triplos tipo B-6 de dimensão interna 230x285 mm. No
  • 49.
    37 mesmo pórtico dobarramento de 72,5 kV, mas distante 17 m da base do disjuntor de 72,5 kV, foi projetada a instalação de três para-raios tipo estação na mesma viga de fixação da cadeia de ancoragem do barramento de 72,5 kV. Ainda nestes dois postes foi deixada, de reserva para eventuais necessidades futuras, dois anéis triplos tipo B-6 de abertura interna 290x370 mm. Devido à distância e a diferença de altura existente entre a bucha de saída do transformador de potência 02T1 e a cadeia de ancoragem de 15 kV para cabos de 240 mm², não seria possível a ligação direta do transformador com a respectiva ancoragem de 15 kV. Portanto, foi decidido incluir no projeto um poste do tipo B, de 10,5 m de comprimento e engastamento de 2,1 m, com um anel triplo tipo B-3 de abertura interna 230x285 mm para a fixação de uma segunda cadeia de ancoragem de 15 kV, que, juntamente com a cadeia de ancoragem instalada no lado BT do Trafo 02T1, sustentarão os cabos Cu nu de 240 mm² que, por meio de conectores T serão ligados às buchas BT do transformador 02T1. Este poste foi posicionado a 7,5 m das estruturas de suporte do barramento de 72,5 kV e alinhado com elas no lado mais próximo do transformador. Os detalhes da ancoragem e da disposição das estruturas podem ser vistos nas plantas UFC.01, UFC.02 e UFC.03. 3.2.5.3 - CONEXÃO AT DO TRAFO 02T1 A conexão AT do transformador de potência 02T1 será feita por meio da chave seccionadora tripolar 32L1 instalada em uma estrutura formada por dois postes tipo B, de 4,5 m de comprimento e engastamento de 2 m, dois suportes Jabaquara tipo B-3, modelo LT, de 1.630 mm e duas vigas tipo Maciça de 120x170x4600 mm, com montagem vertical. Os detalhes da estrutura e o arranjo elétrico da chave 32L1 pode ser visto nas plantas UFC.02 e UFC.04. 3.2.5.4 - CONEXÃO BT DO TRAFRO 02T1 A conexão BT do Trafo 02T1 será feita através do disjuntor de 15 kV, 11T1, com o recurso de by pass pela chave seccionadora tripolar 31T1-6 e pelas chaves seccionadoras
  • 50.
    38 unipolares 31T1-4 e31T1-5. O disjuntor será montado em uma base cuja especificação faz parte do escopo do projeto civil. As chaves serão montadas em vigas sustentadas por anéis fixados nos postes componentes da estrutura suporte do barramento de 15 kV. As chaves seccionadoras unipolares 31T1-4 e 31T1-5 estarão fixadas em uma viga do tipo Maciça de 120x170x3100 mm e montagem vertical, suportada por quatro anéis triplos tipo B-6 com abertura interna de 290x370 mm. A chave seccionadora tripolar de by pass, 31T1-6, será instalada em duas vigas do tipo Maciça de 120x170x3100 mm e montagem vertical, suportadas por dois suportes Jabaquara tipo B-3, modelo LT, de 730 mm. Estes dois conjuntos estão fixados em dois postes tipo B, de 10,5 m de comprimento e engastamento de 2,1 m. 3.2.5.5 - BARRAMENTO DE 15 kV As estruturas suporte do barramento de 15 kV foi projetada de acordo com o número de alimentadores de 13,8 kV. Basicamente, ela é formada por duas fileiras de postes tipo B de 10,5 m e engastamento de 2,1 m, que formam dois quadrados de lado 3,5 m que compartilham um lado. Essa estrutura modular de barramento permite a expansão de alimentadores em função da carga de maneira econômica e simplificada. No primeiro módulo, abaixo da estrutura em que será fixada a cadeia de ancoragem dos cabos de 15 kV vindos das buchas BT do transformador 02T1, ficam os bays do disjuntor 11T1 e do religador 21L1. As chaves seccionadoras unipolares – 31T1-4, 31T1-5, 31L1-4 e 31L1-5 – são de montagem vertical e serão instaladas em duas vigas, por bay, do tipo Maciça de 120x170x3100 mm e montagem vertical e as chaves seccionadoras tripolares de by pass – 31T1-6 e 31L1-6 – são de montagem horizontal e serão instaladas em duas vigas do tipo Maciça de 120x170x3480 mm de montagem vertical, por bay. No caso das chaves de montagem vertical, as suas vigas serão suportadas por dois anéis triplos, por viga, tipo B-6 com abertura interna de 290x370 mm, cada viga. Para as chaves de montagem horizontal as suas vigas serão suportadas por dois suportes Jabaquara duplo tipo LT de 730 mm. No segundo módulo, a estrutura de suporte das chaves seccionadoras unipolares, 21L2-4 e 21L2-5, e da chave seccionadora tripolar de by pass, 21L1-6, relacionadas ao
  • 51.
    39 religador 21L2 seráidêntica à do religador 21L1. O TSA e os TPs de 15 kV serão instalado em um poste tipo B de 6 m de comprimento e engastamento de 2,3 m. O barramento de 15 kV será composto por cabo Cu nu de 240 mm² e será sustentado nas suas duas extremidades por duas cadeias de ancoragem com alças preformadas para cabo de 240 mm². 3.2.5.6 - ILUMINAÇÃO DOS PÁTIOS E ACESSOS As luminárias serão instaladas em postes tipo B de 9 m de comprimento e engastamento de 1,5 m. 3.2.6 - ORÇAMENTO DA SE Foi feito um levantamento baseado nas últimas aquisições de equipamentos e estruturas para a construção das SEs da COELCE e realizou-se um orçamento completo da obra da SE UFC CAMPUS DO PICI. Nele, considerou-se, por exemplo, a instalação de um sistema digital de automação baseado em uma SE de pequeno porte no valor de R$ 358.974,36. Também foram adicionados custos com mão-de-obra civil e de instalação dos equipamentos. Como a malha de terra não foi calculada devido a impossibilidade de realizar a medição da resistência de aterramento sem a terraplanagem do terreno, o único material que esse orçamento não contempla é o vinculado à malha de terra. Sendo assim, excluindo-se a malha de terra, o custo estimado para a SE UFC CAMPUS DO PICI é de R$ 2.156.255,58. 3.3 - CONCLUSÃO Neste capítulo foi introduzido todo o processo de implantação de uma SE. Para isso, foram identificados e analisados todos os subprocessos que formam o macroprocesso Implantação de uma SE Nova. O conhecimento de cada um desses processos é imprescindível pois eles não são independentes e, normalmente, se inter-relacionam de forma que as definições em um processo afete diretamente o andamento de outro.
  • 52.
    40 Em seguida, foidada ênfase no projeto eletromecânico da SE UFC – CAMPUS DO PICI. O planejamento da SE, a escolha do terreno e as indicações para o projeto da malha de terra a partir dos estudos do solo, foram descritos em detalhes. Também foram descritas as estruturas de suporte e fixação por bay da SE e, por fim, mencionou-se o orçamento total da SE a ser descrito no apêndice B desta monografia.
  • 53.
    41 CAPÍTULO 4 CONCLUSÃO EDESENVOLVIMENTOS FUTUROS 4.1 - CONCLUSÃO Nste trabalho foi apresentada uma alternativa de configuração para o projeto eletrome- cânico da SE UFC CAMPUS DO PICI, seguindo, o máximo possível, os padrões e especifi- cações técnicas de equipamentos da concessionária local. Inicialmente, estava prevista a construção da SE na área da antiga SE Pici da Coelce dentro no Campus da UFC. Porém, devido à existência de algumas árvores e um poço que serve à comunidade, optou-se por locar uma área de 80x80 m adjacente a ela. Como não há problema de falta de espaço para a construção da SE, optou-se pela realização do projeto de uma SE aérea que, necessariamente, ocupa maior área que uma SE semi-abrigada. A configuração e locação de estruturas escolhida para a SE permitiu que ela ficasse to- talmente acessada e, assim, não deverá haver problema para a instalação de equipamentos e expansão futura. A expansão foi um fator bastante levado em consideração durante o projeto. Dessa for- ma, a casa de comando foi posicionada de maneira a ficar mais próxima da maior concentra- ção de cabos de controle e não atrapalhar o barramento de 15 kV. Assim, ela foi posicionada próxima ao pátio de 15 kV, mas livrando o lado onde, futuramente, poderá ser instalado um terceiro alimentador. A instalação desse terceiro alimentador, por sua vez é um ponto interes- sante do padrão modular para barramentos que a COELCE possui. Dessa maneira, reduz-se bastante o custo de expansão da instalação. Sabendo que a operação e manutenção de uma SE totalmente aérea requer cuidados es- peciais, podendo, até mesmo, ser mais cara, foi pensado na disposição dos transformadores de força de maneira que caso se queira fazer o barramento de 15 kV em um switchgear, o pátio de 72,5 kV projetado poderá ser aproveitado. Para isso, bastaria a instalação de muflas na saí- da de baixa tensão do transformador de força e os cabos poderiam seguir subterrâneos para a casa de comando. Assim, uma sugestão para trabalhos futuros é a comparação do custo dessa SE com o barramento de 15 kV em switchgear. Por fim, foi feito um orçamento do custo total das obras da SE UFC CAMPUS DO PI- CI. Nele, foram incluídos todos os possíveis gastos com materiais e serviços. Sendo o valor
  • 54.
    42 estimado da obracompleta de R$ 2.156.255,58. Outra sugestão para trabalhos futuros é o es- tudo da taxa de atratividade financeira para a realização da obra pela redução na tarifa de energia elétrica que universidade terá devido a instalação de uma SE 69/13,8 kV. 4.2 - TRABALHOS FUTUROS Devido ao estabelecimento de prazo para a entrega desta monografia e a falta de recur- sos disponíveis para a realização dos estudos preliminares, não foi possível a realização da terraplanagem e, assim, a medição da resistividade do solo. Dessa forma, apesar de definida a área e indicada a metodologia para a medição da resistividade do solo, o projeto da malha de terra deverá ser realizado após o estudo do solo e a terraplanagem. Esta monografia tratou essencialmente do projeto eletromecânico da SE UFC - CAM- PUS DO PICI, e, conforme exposto no Capítulo 3, devem ser realizados outros projetos a par- tir deste, para que se tenha um projeto completo da SE. São eles: projeto civil, projetos elétri- cos e de automação e estudo da rede de distribuição. Uma sugestão para trabalhos futuros e que deve balizar qualquer trabalho de engenharia é a realização de um estudo de viabilidade econômica da obra. Dessa forma, devem ser reali- zados estudos para a verificação da atratividade financeira sob as condições de consumidor livre e consumidor cativo.
  • 55.
    41 REFERÊNCIAS BIBLIOGRÁFICAS [1] Presidênciada República Federativa do Brasil. Retomada do crescimento econômico foi responsável pelo consumo recorde de energia em 2010 [on-line]. Disponível em: http://www.brasil.gov.br/noticias/arquivos/2011/01/05/retomada-do-crescimento- economico-foi-responsavel-pelo-consumo-recorde-de-energia-em-2010. (acessado em 21/03/2011). [2] Operador Nacional do Sistema Elétrico. Boletim de Carga Anual: Avaliação da Evolução da Carga x PIB – Ano de 2008 [on-line]. Disponível em: http://www.ons.org.br/download/sala_imprensa/Boletim_Carga_2008-PIB.pdf. (acessado em 21/03/2011). [3] Agência Nacional de Energia Elétrica. Procedimentos de Distribuição de Energia Elétrica no Sistema Elétrico Nacional – PRODIST [on-line]. Disponível em: http://www.aneel.gov.br/area.cfm?idArea=82. (acessado em 28/03/2011). [4] Agência Nacional de Energia Elétrica. Procedimentos de Distribuição de Energia Elétrica no Sistema Elétrico Nacional – PRODIST. Módulo 1 – Introdução [on-line]. Disponível em: http://www.aneel.gov.br/arquivos/PDF/M%C3%B3dulo1_Revisao_2.pdf . (acessado em 28/03/2011). [5] Agência Nacional de Energia Elétrica. Procedimentos de Distribuição de Energia Elétrica no Sistema Elétrico Nacional – PRODIST. Módulo 3 – Acesso ao Sistema de Distribuição [on-line]. Disponível em: http://www.aneel.gov.br/arquivos/PDF/Modulo3_Revisao_3_Retificacao_1.pdf. (acessado em 28/03/2011).
  • 56.
    42 [6] Barros, J.V. C. Estudo de viabilidade econômica e das proteções da subestação de 69- 13,8 kV do Campus do Pici da Universidade Federal do Ceará, Universidade Federal do Ceará – UFC, 2010, 94p. [7] Filho, João Mamede. Manual de Equipamentos Elétricos. 3a Ed. Rio de Janeiro: LTC – Livros Técnicos e Científicos, 2005, 778 p. [8] Rao, S. Electrical Substation: engineering practice. 3a Ed. New Delhi: Khanna Publishers, 2009, 568 p. [9] Leão, R. P. S. Capítulo 4 - Distribuição de Energia [on-line]. Disponível em: http://www.dee.ufc.br/~rleao/GTD/Apostila_GTD.htm. (acessado em 01/10/2010). [10]COELCE. NT-004: Fornecimento de Energia Elétrica em Alta Tensão – 69 kV [on-line]. R-05. Fortaleza: Área de Normas e Procedimentos, 2011. Disponível em: https://www.coelce.com.br/sobrecoelce/normastecnicas/normas-tecnicas.aspx. (acessado em 22/05/2011). [11]COELCE. CP-011: Critério de Projeto – Subestação de Distribuição Aérea e Semi- abrigada 72,5-15 kV [on-line]. Fortaleza: Área de Normas e Procedimentos, 2003. Disponível em: https://www.coelce.com.br/sobrecoelce/normastecnicas/criterios-de- projetos.aspx. (acessado em 22/05/2011). [12]COELCE. PS-051: Padrão de Subestação – Subestação de Distribuição Aérea e Semi- abrigada 72,5-15 kV [on-line]. R-02. Fortaleza: Área de Normas e Procedimentos, 2005. Disponível em: https://www.coelce.com.br/sobrecoelce/normastecnicas/padroes-de- subestacao.aspx. (acessado em 22/05/2011). [13]COELCE. PS-052: Padrão de Subestação – Detalhes de Instalação e Montagem de Equipamentos e Materiais 72,5 – 15 kV [on-line]. R-00. Fortaleza: Área de Normas e Procedimentos, 2003. Disponível em:
  • 57.
    43 https://www.coelce.com.br/sobrecoelce/normastecnicas/padroes-de-subestacao.aspx. (acessado em 22/05/2011). [14]COELCE.ET-300: Especificação Técnica – Postes de Concreto Armado [on-line]. R-04. Fortaleza: Área de Normas e Procedimentos, 2009. Disponível em: https://www.coelce.com.br/sobrecoelce/normastecnicas/especificacoes-tecnicas.aspx. (acessado em 22/05/2011). [15]Kindermann, Geraldo. Curto-circuito. 2ª Ed. Porto Alegre: Sagra Luzzatto, 1997, 221 p. [16]Grainger, John J., Stevenson, William D. Power System Analysis. USA: McGraw-Hill, 2004, 787 p.
  • 58.
    APÊNDICE A (MEMORIAL DESCRITIVODO PROJETO ELETROMECÂNICO DA SE 69/13,8 KV UFC – CAMPUS DO PICI)
  • 59.
    SE UFC CAMPUS DOPICI Memorial Descritivo SE Nova 72,5/15kV Data: Maio/2011
  • 60.
    TÍTULO: SE UFCCAMPUS DO PICI – SE Nova 72,5/15kV DATA: 27/06/2011 ELABORAÇÃO: João Victor da Costa Vale PÁGINA: 2/19 Conteúdo 1. OBJETIVO ..................................................................................................... 3 2. LOCALIZAÇÃO DA SUBESTAÇÃO..................................................................... 3 3. CONDIÇÕES DE SERVIÇO .............................................................................. 3 4. CRITÉRIOS DE PROJETO ............................................................................... 3 5. DESCRIÇÃO DOS EQUIPAMENTOS.................................................................. 7 6. DOCUMENTOS DE REFERÊNCIA DO PROJETO............................................... 18
  • 61.
    TÍTULO: SE UFCCAMPUS DO PICI – SE Nova 72,5/15kV DATA: 27/06/2011 ELABORAÇÃO: João Victor da Costa Vale PÁGINA: 3/19 1. OBJETIVO Este memorial descritivo descreve o projeto eletromecânico referente à construção da SE UFC CAMPUS DO PICI, nova, 72,5/15 kV, capacidade inicial instalada de 6,25MVA com previsão de expansão para 12,5 MVA. Para isso, foi seguido o padrão de SE Pequeno Porte COELCE. Esta obra visa atender o crescimento da demanda da universidade, melhorar a qualidade da energia fornecida para suas cargas e possibilitar a economia com a redução na tarifa de energia. 2. LOCALIZAÇÃO DA SUBESTAÇÃO A Subestação será localizada dentro do terreno do Campus do Pici da UFC, no município de Fortaleza, no estado do Ceará. 3. CONDIÇÕES DE SERVIÇO Os equipamentos a serem instalados na subestação UFC CAMPUS DO PICI, estarão submetidos às seguintes condições de serviço: Altitude ..............................................................abaixo de 1000m Temperatura ambiente máxima .........................40°C Temperatura média diária .................................30°C Umidade relativa do ar ......................................até 100% 4. CRITÉRIOS DE PROJETO A SE foi concebida e projetada respeitando o estabelecido na NT-004 e seguindo os padrões COELCE para SE’s 72,5/15kV. PS-051(PADRÃO DE SUBESTAÇÃO DA COELCE) e PS-052(PADRÃO DE DETALHES DE INSTALAÇÃO E MONTAGEM DE EQUIPAMENTOS E MATERIAIS) apresentando as seguintes características: 4.1Suprimento A Subestação UFC CAMPUS DO PICI será suprida na tensão 72,5kV, através de uma SE Derivadora conectada à LDAT Pici II-Bom Sucesso (02L5) em condutor 315mm² CAL Elgin.
  • 62.
    TÍTULO: SE UFCCAMPUS DO PICI – SE Nova 72,5/15kV DATA: 27/06/2011 ELABORAÇÃO: João Victor da Costa Vale PÁGINA: 4/19 4.2Circuitos Alimentadores de 15 kV O barramento de 15 kV terá capacidade para suprir três alimentadores aéreos de distribuição. Os circuitos alimentadores de distribuição serão construídos com cabo de cobre, bitola 120 mm², até a primeira estrutura de saída. 4.3Estrutura Suportes de Barramento As estruturas suporte dos barramentos de 72,5 kV e 15 kV serão construídas com peças pré-moldadas em concreto, constituída por postes, anéis, suportes e vigas, formando um conjunto padrão COELCE. Compõem o conjunto de estruturas auxiliares suportes dos secionadores, transformadores de corrente e de potencial e transformador de serviços auxiliares. 4.4Barramentos Os barramentos, de 72,5 kV e de 15 kV, serão do tipo barra simples. A barra de 72,5 kV será construída com condutor 315 mm² CAL Elgin, com espaçamento entre fases de 2.130 mm e entre fase-terra 1.100 mm. A barra de 15 kV será composta de um condutor de cobre nu por fase, formação 37 fios, bitola 240 mm², cujos espaçamentos fase-fase e fase-terra serão de 800 e 540 mm, respectivamente. 4.5Bay de Transformação Será instalado um transformador de potência, classe de tensão 72,5 kV-15 kV e potência 5,0/6,25 MVA, equipado com ventilação forçada em dois. 4.6Serviços Auxiliares O sistema de serviços auxiliares em corrente alternada (CA) será o padrão COELCE, na tensão 380/220 V, cujas cargas serão supridas por um transformador tipo distribuição, classe 15-1,2 kV e potência de 75 kVA. O sistema de serviços auxiliares em corrente contínua (CC) será em 125 Vcc, sendo composto por um retificador/carregador estático, trifásico 380 Vca/125 Vcc, e bateria estacionária, chumbo-ácido, 60 elementos, 100 Ah. Este conjunto suprirá as cargas de sinalização, controle e proteção, além das cargas de iluminação de emergência da subestação.
  • 63.
    TÍTULO: SE UFCCAMPUS DO PICI – SE Nova 72,5/15kV DATA: 27/06/2011 ELABORAÇÃO: João Victor da Costa Vale PÁGINA: 5/19 4.7Sistema de Proteção • • • •Entrada de Linha 72,5 kV O bay de entrada de linha será com disjunção automática. A proteção contra sobretensões de origem atmosférica ou surto de manobra será exercida por pára-raios tipo estação 72 kV, 10 kA; instalados no primeiro ponto de conexão do bay de entrada de linha. • • • •Transformador de Potência 72,5/15 kV A proteção contra falhas internas na unidade transformadora 72,5/15 kV será exercida pelo conjunto de dispositivos de proteção que se segue: Relé de gás, Bucholz, função 63. Válvula de alivio de pressão, função 63A. Relé de temperatura do enrolamento, função 49. Relé de temperatura do óleo, função 26. • • • •Transformador de Serviços Auxiliares A proteção contra sobrecorrente do transformador de serviços auxiliares será feita por meio de elos fusíveis 5A, tipo rápido, os quais serão instalados em secionadores fusíveis 24 kV, 100 A, 6,3 kA. • • • •Circuitos de Saída de Alimentadores 15 kV Os circuitos aéreos de alimentadores 15 kV serão dotados de proteção conforme especificação técnica da COELCE. Os relés serão sensibilizados por TC’s de bucha do próprio religador e atuarão diretamente sobre a bobina de desligamento deste. A proteção contra sobretensões será feita por meio de pára-raios tipo distribuição, 15 kV, 10 kA, instalados na primeira estrutura de saída do alimentador. 4.8Sistema de Medição • • • •Entrada de linha de 72,5 KV Na EL de 72,5 kV serão feitas as medições de corrente, tensão, potência ativa e reativa e energia ativa e reativa e demanda, através um conjunto de medição formado por dois TCs e três TPs fornecidos pela COELCE e de medidor multifunção instalado no painel de medição de faturamento
  • 64.
    TÍTULO: SE UFCCAMPUS DO PICI – SE Nova 72,5/15kV DATA: 27/06/2011 ELABORAÇÃO: João Victor da Costa Vale PÁGINA: 6/19 • • • •Serviços Auxiliares Na barra de 380/220Vca de serviços auxiliares da subestação serão feitas às medições de tensão, corrente e energia ativa do consumo próprio da Subestação. Os medidores estarão instalados no quadro de serviços auxiliares da subestação. 4.9Aterramento O sistema de aterramento da subestação será composto por eletrodos horizontais (Malha de Terra) e eletrodos verticais (Hastes Cobreadas). A Malha será em cabo de cobre nu, têmpera meio-dura, bitola 70 mm² e eletrodos verticais com 3 m de comprimento, constituídos de uma haste cobreada com 20 mm (3/4 “) de diâmetro e 3,0 metros de comprimento com espessura mínima de cobre 0,254 milímetros soldada exotermicamente a cabo de cobre nu, bitola 70 mm². 4.10Blindagem A blindagem das instalações da subestação será feita por pára-raios tipo hastes metálicas perfil L de comprimento 4,60 m, instalados nos postes das estruturas suportes dos barramentos. No setor de 72,5 kV será instalado um (01) pára-raios em cada poste com espaçamento de 7,5 m e no setor de 15 kV os pára-raios serão instalados em postes alternados com espaçamento de 7,0 metros. 4.11Iluminação e Tomadas dos Pátios A iluminação dos pátios da subestação será feita por lâmpadas vapor de sódio, híbridas, 240 V, 150 Watts, instaladas em luminárias, uso externo. As luminárias para iluminação dos pátios 72,5 kV e 15 kV serão fixadas em postes tipo D, altura de 9 m alocados próximos ao pátio e também próximo ao muro limítrofe do terreno da Subestação e ao longo do acesso. Além desta iluminação a subestação será dotada ainda de iluminação de emergência e tomadas trifásicas 380 V, 30 A e monofásicas 220 V, 15 A, instaladas no interior dos pátios de 72,5 kV e 15 kV da SE. Os circuitos de alimentação e tomadas dos pátios serão comandados a partir de disjuntores termo- magnéticos moldados a seco, instalados no quadro de serviços auxiliares da subestação.
  • 65.
    TÍTULO: SE UFCCAMPUS DO PICI – SE Nova 72,5/15kV DATA: 27/06/2011 ELABORAÇÃO: João Victor da Costa Vale PÁGINA: 7/19 4.12Nível Básico de Isolamento O NBI utilizado na SE UFC CAMPUS DO PICI classe 72,5-15kV, é o recomendado e padronizado pela ABNT, qual seja: Classe Isolamento Nível de Isolamento 72,5 kV 350kV 15 kV 110 kV 5. DESCRIÇÃO DOS EQUIPAMENTOS 5.1Equipamentos Externos do Setor de 72,5kV • • • •Pára-raios tipo estação a) Descrição Os pára-raios instalados nos circuitos de entradas e saídas de linha 72,5 kV e no bay de transformação serão do tipo estação 72 kV, 10 kA para proteção contra descargas atmosféricas diretas. b) Características Elétricas Fabricante........................................................a definir Tipo.................................................................. Tensão nominal .............................................. 72 kV Tensão disruptiva máxima (1,2x50 µs) ........... 270 kV Tensão disruptiva mínima à 60 Hz .................. 112,5 kV Tensão residual máxima de descarga para corrente 10 kA (8 x 20 µs) ....................... 198 kV Corrente nominal de descarga (8 x 20 µs)....... 10 kA Corrente de curta duração (4 x 10 µs) ............ 100 kA • • • •Seccionadores Tripolares a) Descrição
  • 66.
    TÍTULO: SE UFCCAMPUS DO PICI – SE Nova 72,5/15kV DATA: 27/06/2011 ELABORAÇÃO: João Victor da Costa Vale PÁGINA: 8/19 Os seccionadores tripolares terão montagem vertical ou horizontal, com abertura lateral e comando manual através de um mecanismo composto por hastes de ferro verticais e horizontais, de tal maneira que os pólos do secionados são acionados em grupo. b) Características Elétricas Fabricante........................................................a definir Tipo..................................................................a definir Tensão nominal ..............................................72,5 kV Corrente nominal ............................................1250 A Corrente suportável de curta duração .............20 kA Freqüência nominal .........................................60 Hz Nível básico de isolamento .............................350 kV Operação ........................................................Manual Distância entre pólos........................................2,13 m • • • •Transformador de Corrente 72,5 kV a) Características Elétricas Fabricante........................................................a definir Tipo..................................................................a definir Tensão nominal ..............................................72,5 kV Tipo de serviço.................................................Proteção/Medição Classe de exatidão ..........................................10B200/0,3C2,5 a C50 Relação de transformação ..............................200/400/600x400/800/1200-5- 5A Nível de Isolamento .........................................350 kV • • • •Disjuntor 72,5 kV a) Descrição O disjuntor de 72,5 kV é do tipo SF6, uso externo, trifásico, com comando automático. b) Características Elétricas Fabricante........................................................a definir Tipo..................................................................a definir
  • 67.
    TÍTULO: SE UFCCAMPUS DO PICI – SE Nova 72,5/15kV DATA: 27/06/2011 ELABORAÇÃO: João Victor da Costa Vale PÁGINA: 9/19 Tensão nominal ..............................................72,5 kV Freqüência nominal .........................................60 Hz Corrente nominal ............................................1250 A Corrente de curto circuito simétrico .................25 kA Corrente de estabelecimento ..........................a definir Tensão do motor..............................................220 Vca Tensão da bobina de fechamento....................125 Vcc Tensão da bobina de abertura.........................125 Vcc Tensão da impulso pleno ................................350 kV Tensão suportável 60 Hz 1 min ......................140 Kv • • • •Transformador de potência a) Descrição Será instalado transformador de potência trifásico, com dois enrolamentos com bobinamento em condutor de cobre, imerso em óleo isolante, com terminais acessíveis através de buchas capacitivas não condensáveis. O transformador apresenta seus componentes principais acondicionados em um tanque em chapa de aço que suporta o vácuo pleno, enquanto seus acessórios estão montados junto ao tanque constituindo-se numa peça única. Esta peça será instalada sobre trilhos em uma base de conMCBto armado. Constitui-se, ainda, dos seguintes acessórios: Radiadores de resfriamento do óleo; Ventiladores (1º e 2º estágios); Termômetro de temperatura do enrolamento; Termômetro de temperatura do óleo; Indicador de nível de óleo; Secador de ar sílica-gel; Relé Bucholz; Tanque de expansão de óleo. b) Características Elétricas Fabricante ....................................................... Nº Série ........................................................... Tipo .................................................................PTOE Ano de fabricação ........................................... Potência nominal ............................................ 5,0/6,25 MVA Classe tensão superior ................................... 72,5 kV Classe tensão inferior ..................................... 15 kV Número de fases ............................................. 3 Isolamento ...................................................... Papel e óleo
  • 68.
    TÍTULO: SE UFCCAMPUS DO PICI – SE Nova 72,5/15kV DATA: 27/06/2011 ELABORAÇÃO: João Victor da Costa Vale PÁGINA: 10/19 Resfriamento ................................................... ONAN/ONAF1 Nível Básico de Isolamento Primário .............. 350 kV Nível Básico de Isolamento Secundário .......... 110 kV Ligação primária ............................................. Delta Ligação secundária ......................................... Estrela c/ neutro acessível Impedância a 75°C, base 6,25MVA: Relação 69300-13800V ..................................% Relação 67650-13800V .................................. Relação 66000-13800V ..................................% Relação 64350-3800V ..................................... Relação 62700-13800V ...................................% 5.2Equipamentos Externos do Setor de 15kV • • • •Transformador de Corrente 15KV a) Características Elétricas Fabricante........................................................a definir Ano ..................................................................a definir Tipo ................................................................. Nº Série ........................................................... Tensão Nominal ..............................................15 kV Tipo de serviço.................................................Proteção e Medição Classe de exatidão ..........................................0,6C50 - 10B200 Relação de transformação .............................200/400/600x .........................................................................400/800/1200-5-5A Nível de isolamento .........................................110 kV Fator térmico ...................................................1,2 • • • •Disjuntor 15kV a) Descrição O disjuntor de 15kV é do tipo a vácuo/SF6, uso externo, trifásico, com comando automático, com transformador de corrente acoplado.
  • 69.
    TÍTULO: SE UFCCAMPUS DO PICI – SE Nova 72,5/15kV DATA: 27/06/2011 ELABORAÇÃO: João Victor da Costa Vale PÁGINA: 11/19 b) Características Elétricas Fabricante .......................................................á definir Tipo .................................................................á definir Ano de fabricação ........................................... 2006 Tensão nominal .............................................. 15 kV Corrente nominal ............................................ 1250A Corrente de curto circuito simétrico ................. 75ms Tempo de interrupção total ............................. 25kA Freqüência nominal ......................................... 60 Hz Tensão do motor ............................................. 220 Vca Tensão da bobina de fechamento ................... 125 Vcc Tensão da bobina de abertura ........................ 125 Vcc • • • •Secionadores Tripolares 15kV a) Descrição Os secionadores tripolares são montados em base de ferro galvanizado, perfil “U” e serão instalados na posição horizontal ou vertical na estrutura do barramento de 15kV, de onde serão comandadas manualmente, através de mecanismo próprio. O isolamento fase-terra é feito por isoladores tipo pedestal, classe TR-4. Cada secionador será ainda dotado de conectores de linha e de aterramento. b) Características Elétricas Fabricante ....................................................... á definir Tensão nominal .............................................. 15 kV Corrente nominal ............................................ 630 A / 1250A Corrente suportável de curta duração ............. 16 kA Valor de crista mínima da corrente Suportável (valor de pico) ............................... 32 kA Freqüência nominal ......................................... 60 Hz Nível básico de isolamento ............................. 110 kV Operação ........................................................ Manual
  • 70.
    TÍTULO: SE UFCCAMPUS DO PICI – SE Nova 72,5/15kV DATA: 27/06/2011 ELABORAÇÃO: João Victor da Costa Vale PÁGINA: 12/19 • • • •Secionadores Unipolares 15kV a) Descrição Os secionadores unipolares são montados em base de ferro galvanizado, perfil “U” e serão instalados na posição vertical e horizontal, na estrutura do barramento de 15kV, donde serão comandadas normalmente por intermédio de vara-de-manobra. O isolamento fase-terra é feito por isoladores tipo pedestal, classe TR-4. Cada secionador será ainda dotado de conectores de linha e de aterramento. b) Características Elétricas Fabricante........................................................ á definir Tensão nominal .............................................. 15 kV Corrente nominal ............................................ 630 A / 1250 A Corrente suportável de curta duração ............. 16 kA Freqüência nominal ......................................... 60 Hz Nível básico de isolamento ............................. 110 kV Operação manual ........................................... vara-de-manobra • • • •Religador 15kV a) Descrição Os religadores são interruptores protetores, trifásicos, de faltas, para o setor de distribuição e de alimentação. A unidade é capaz de detectar condições de defeito e abrir automaticamente, de modo simultâneo, as três fases, e então religar o circuito ao qual está conectado, após um retardo de tempo, pré-ajustado. Se as condições de defeito permanecer, a unidade reabrirá automaticamente. Este ciclo O-C-O poderá Repetir-se por até três vezes. Os equipamentos podem ser operados manual ou eletricamente, através de comando local instalado em seu próprio painel. b) Características Elétricas
  • 71.
    TÍTULO: SE UFCCAMPUS DO PICI – SE Nova 72,5/15kV DATA: 27/06/2011 ELABORAÇÃO: João Victor da Costa Vale PÁGINA: 13/19 Fabricante....................................................a definir Tipo .............................................................a definir Tensão nominal .......................................... 15kV Freqüência Máxima .................................... 60Hz Corrente nominal ........................................ 800 A Corrente interrupção simétrica .................... 16 kA Fator de assimétrica ................................... 1,2 Ciclo de operação........................................O-(0,3 a 240)seg- .....................................................................CO-(5a 240)seg .....................................................................CO-(5 a 240)seg-CO Tempo de interrupção ................................. 3,5 CICLOS Nível básico de isolamento ......................... 110 kV Tensão do motor ......................................... 125 Vcc Tensão da bobina de fechamento .............. 125 Vcc Tensão da bobina de abertura .................... 125 Vcc RTC bucha .................................................. a definir Classe de Exatidão ..................................... 10B400 Fator térmico................................................................ 1,2 Relê Microprocessado ................................ a definir • • • •Transformador de Potencial 15kV a) Descrição Os transformadores de potencial são indutivos, monofásicos com isolamento a óleo e papel, apresentam suas buchas montadas na parte superior. Os mesmos serão montados sobre suporte metálicos fixados em viga de conMCBto armado. Os TP’s 15kV alimentam os medidores associados ao barramento de 15kV, e o sistema de controle do banco de capacitores. b) Características Elétricas Fabricante.................................................. a definir Tipo............................................................ a definir Tensão nominal ........................................ 15 kV Tensão primária nominal .......................... 13,8 kV Tensão secundária nominal ...................... 115 kV
  • 72.
    TÍTULO: SE UFCCAMPUS DO PICI – SE Nova 72,5/15kV DATA: 27/06/2011 ELABORAÇÃO: João Victor da Costa Vale PÁGINA: 14/19 Relação de transformação ........................ 120 Freqüência Nominal .................................. 60 Hz Classe de exatidão ...................................0,6P200 Potência térmica ....................................... 2000VA Nível Básico de Isolamento ...................... 110 kV • • • •Pára-Raios 15kV Pára-raios tipo estação a) Descrição Serão instalados pára-raios tipo estação 15kV, 10kA no barramento de 15kV e pára-raios tipo distribuição 15kV, 10kA nas primeiras estruturas de saída dos alimentadores 15kV para proteção contra descargas atmosféricas diretas. b) Características elétricas Fabricante .................................................a definir Tipo ........................................................... Tensão nominal ........................................ 15 kV Tensão disruptiva máxima (1,2µs) ............ 54 kV Tensão disruptiva mínima a 60Hz ............ 22,5 kV Tensão residual máxima de descarga para corrente 10kA (8x20µs) .................... 46kV Corrente nominal de descarga (8x20µs) ... 10 kA Corrente de curta duração (4x20µs) ......... 100 Ka Pára-raios tipo Distribuição a) Características elétricas Fabricante ....................................................... a definir Tipo ................................................................. Tensão nominal .............................................. 15 kV Tensão disruptiva máxima (1,2 x 50 µs) ......... 46 kV Tensão disruptiva mínima a 60 Hz .................. 22,5 kV Tensão residual máxima de descarga para 10 kA (8 x 20 µs) .............................................36 kV
  • 73.
    TÍTULO: SE UFCCAMPUS DO PICI – SE Nova 72,5/15kV DATA: 27/06/2011 ELABORAÇÃO: João Victor da Costa Vale PÁGINA: 15/19 Corrente nominal de descarga (8 x 20 µs) 10 kA Corrente de curta duração (4 x 10 µs) ............ 100 kA • • • •Transformador Serviços Auxiliares a) Características Elétricas Fabricante .......................................................a definir Nº de série ...................................................... Número de fases ............................................. 3 Tensão primária .............................................. 13.800V Tensão secundária................................... 380/220V Freqüência ...................................................... 60 Hz Resfriamento ................................................... ONAN Potência Nominal ............................................ 75 kVAR Ligações: Primário ........................................................... Triângulo Secundário ...................................................... Estrela aterrado Nível Básico de Isolamento: Primário ........................................................... 110kV Secundário ...................................................... 4kV • • • •Secionador Fusível (Secionamento do TSA) a) Descrição Os secionadores fusíveis serão instados na posição vertical, utilizando-se das vigas de conMCBto armado da estrutura do barramento de 15kV e serão operados manualmente por vara-de-manobra. O isolamento fase-terra é feito por um único isolador tipo NEMA TR-4. Cada secionador será ainda dotado de conectores de linha e de aterramento. b) Características Elétricas Fabricante ...........................................................a definir Tipo ..................................................................... Tensão nominal ................................................... 24 kV Corrente nominal ................................................. 100 A
  • 74.
    TÍTULO: SE UFCCAMPUS DO PICI – SE Nova 72,5/15kV DATA: 27/06/2011 ELABORAÇÃO: João Victor da Costa Vale PÁGINA: 16/19 Corrente mínima de interrupção simétrica .......... 6,3 kA Corrente mínima de interrupção assimétrica .. 9 kA • • • •Quadro de serviços auxiliares CA a) Descrição O quadro de serviços auxiliares, instalado na sala de comando é do tipo SIMPLEX padrão, composto por 1 (um) painel. Na parte frontal estão montados os instrumentos indicadores, chaves comutadoras para instrumentos, lâmpadas de sinalização e disjuntores termo-magnético dos circuitos de serviços auxiliares CA. O acesso ao interior do quadro se faz por portas localizadas na parte posterior do mesmo, enquanto o acesso dos cabos se faz pela parte inferior até alcançar a régua de bornes terminal. A fiação interna se ramifica no interior dos painéis em calhas plásticas realizando as ligações entre equipamentos, instrumentos e régua de bornes. Abriga os equipamentos de controle e medição dos serviços auxiliares de corrente alternada. • • • •Bateria de Acumuladores a) Descrição A bateria de acumuladores é do tipo estacionária, chumbo-ácido, com fornecimento conforme Especificação Técnica ET. 191. Cada um dos elementos da bateria compõem-se de placas positiva e negativa imersas em eletrólito ácido, acondicionadas em recipiente plástico com pólos acessíveis. Os mesmos são dotados de chapas conectores, válvula à prova de explosão para dissipação de gases e válvula lateral para medição da densidade do eletrólito e temperatura das placas.
  • 75.
    TÍTULO: SE UFCCAMPUS DO PICI – SE Nova 72,5/15kV DATA: 27/06/2011 ELABORAÇÃO: João Victor da Costa Vale PÁGINA: 17/19 A bateria será instalada em sala especial da Casa de Comando, com seus elementos acomodados numa estante metálica, interligados, de forma a prover o sistema CC com uma tensão nominal de 125 Vcc. Em condições normais de operação, a bateria estará em regime de flutuação, isto é, conectada ao circuito do retificador CA-CC. b) Características Elétricas Fabricante........................................................a definir Tipo..................................................................a definir Tensão Nominal .............................................. 125 Vcc Capacidade de descarga (10 h) ...................... 100 A.h Tensão final de descarga por elemento .......... 1,21 Vcc Número de elementos ..................................... 60 Eletrólito........................................................... Solução de Ácido-sulfúrico • • • •Retificador tipo “A” a) Descrição O carregador-retificador será acoplado ao circuito de corrente contínua em paralelo com a bateria. O mesmo abriga todos os equipamentos de transformação e retificação de tensão, além dos de proteção, medição, controle e sinalização, estes com instalação aparente, na parte frontal do painel do retificador. Possuirá em seu gabinete um barramento de distribuição com trinta disjuntores termomagnéticos bipolares de 20 A para alimentação dos circuitos de serviços auxiliares CC. b) Características Elétricas Fabricante........................................................ a definir
  • 76.
    TÍTULO: SE UFCCAMPUS DO PICI – SE Nova 72,5/15kV DATA: 27/06/2011 ELABORAÇÃO: João Victor da Costa Vale PÁGINA: 18/19 Tipo.................................................................. a definir Número de fases.............................................. 03 Tensão nominal de entrada(eficaz) ................. 380 Vca/60 Hz Tensão nominal de saída ................................ 125 Vcc Freqüência ...................................................... 60 Hz Configuração (25 Acc + 25 Acc) ..................... 1+1 Capacidade nominal em corrente continua ..... 25 A Rendimento mínimo ........................................ 85% Ruído (ripple) em operação com bateria conectada ........................................................ 3% Regulação estática na voltagem de saída (0 à 100% da carga)......................................................... . 3% Fator de potencia indutivo acima de ............... 0,92 6. DOCUMENTOS DE REFERÊNCIA DO PROJETO 6.1Especificação Técnica E-SE-0001 – Transformador de Potência E-SE-0002 – Disjuntor 72,5 kV E-SE-0003 - Disjuntor 15 kV E-SE-0004 - Secionadores de alta Tensão E-SE-0005 - Transformador de Corrente e de Potencial E-SE-0006 - Secionadores de Média Tensão E-SE-0007 - Transformadores de medidas E-SE-0009 – Banco de Capacitores E-MT-008 – Reguladores de tensão E-MT-009 - Transformadores de distribuição ET-145 – Religadores ET-155 – Para-raios estação 001/1999 - Secionador Fusível 4.13Padrões PS-051.01 – Padrões de Subestações;
  • 77.
    TÍTULO: SE UFCCAMPUS DO PICI – SE Nova 72,5/15kV DATA: 27/06/2011 ELABORAÇÃO: João Victor da Costa Vale PÁGINA: 19/19 PS-052.01 – Padrões de Detalhes e Montagem; PM-01– Padrão de Materiais; Elaboração
  • 78.
    APÊNDICE B (ORÇAMENTO DASE 69/13,8 KV UFC – CAMPUS DO PICI)
  • 79.
    Data Impressão: 20/05/201115:08:57 : CONSTRUÇÃO DE NOVA SUBESTAÇÃO CAMPUS DO PICI : JOÃO VICTOR DA COSTA VALE : : PD PADRAO : 20/05/2011 : : CONSTRUÇÃO DE NOVA SUBESTAÇÃO CAMPUS DO PICI Solicitação : Total (A) : R$ 1.458.592,38 Total (B) : R$ 598.559,72 Total (C) : R$ 150.219,13 Custo Global da Obra : R$ 2.207.371,23 Técnico Responsável Dep. Elaborador ORÇAMENTO DE MATERIAIS E SERVIÇOS Orçamento Dados Gerais do Orçamento Trabalho Projeto Tipo Preço Data Base
  • 80.
    Código Descrição U.Med Qtde Pr. Unit Pr. Total 90001 CABEÇOTE,BAQ;ELET/CXMED;1POL UN 12,00 4,83 57,96 90002 CABEÇOTE,BAQ;ELET/CXMED;2POL UN 1,00 6,04 6,04 90004 CONEC,MACHO-FIXO;LATÃO;1,1/2 UN 17,00 15,94 270,96 90005 CONEC,MACHO-FIXO;LATÃO;2 UN 10,00 26,45 264,50 90007 ELET,MET;FLX;PVC;1,1/2;D64150 UN 7,00 9,1 63,72 90008 ELET,MET;FLX;PVC;2;D64150 UN 3,00 15,58 46,75 90009 UNIÃO,MACHO-FÊMEA;AZ;1 UN 7,00 7,19 50,35 90010 UNIÃO,MACHO-FÊMEA;AZ;1,1/2 UN 14,00 19,69 275,63 90011 UNIÃO,MACHO-FÊMEA;AZ;2 UN 6,00 29,7 178,23 90012 REGUA,BORN;T,BAQ;600V;5P;150A UN 1,00 15,05 15,05 90015 ABRAC,GRAMP;U;AZ;35X90MM;COMP UN 2,00 2,42 4,83 90016 BUJÃO,SELADOR;PVC;ROSCA 3/4 UN 30,00 4,23 126,95 90017 BUJÃO,SELADOR;PVC;ROSCA1 UN 10,00 4,83 48,30 90018 CORDOALHA,CU ESTANHADO;350MM UN 2,00 6,28 12,56 90020 REGUA,BORN;T,BAQ;600V;12P;15A UN 5,00 25,71 128,57 90021 LUVA,REDUÇ;ELETPVC;2X/1,1/2 UN 2,00 0,56 1,11 90022 CAIXA,DRV;AL;T;2;D64102 UN 1,00 12,76 12,76 90033 ISOL,EPOXI UN 2,00 1,58 3,15 90035 TRILHO,OHMEGA;PARA CONTACTOR M 1,00 3,99 3,99 90036 REGUA,BORNES;SAQUE;70MM2 UN 6,00 15,75 94,50 90037 CHAPA,COBRE;PARABARRAMENTO UN 1,00 31,5 31,50 90038 POSTE,K2 UN 2,00 2,1 4,20 90039 TAMPA,PARACONECTOR SAK UN 1,00 1,58 1,58 4543476 PO,SOLDA EXOT;CART 90G;D82040 UN 142,00 2,67 379,14 4543477 PO,SOLDA EXOT;CART 115G;D82040 UN 16,00 3,33 53,26 4543871 CONECTOR,T;CAA 477MCM;TR/DR;D- UN 30,00 45,68 1.370,40 4543915 CONEC,TER;RET;2F;A/C;6-750 UN 72,00 77,72 5.595,91 4544022 TOMADA,BLIND;RED;20A;500V;3POL UN 2,00 35,47 70,94 4544024 TOMADA,BLIND;RED;20A;500V;4POL UN 2,00 56,39 112,77 4544141 SEC,3P;72,5-1250-MTACHA;ESE004 UN 1,00 23.363,55 23.363,55 4544185 TRAFO,POT;C1;5/6,25;ESE001 UN 1,00 510.944,23 510.944,23 4544198 TP;13,8KV-115V;0,6P200;2000VA UN 3,00 3.318,38 9.955,13 4544199 BAT,EST;PB-AC;SEL;100;C;ET191 UN 1,00 5.389,69 5.389,69 4544265 LAMPADA,INCAND;100W;130VCC;PAD UN 10,00 1,11 11,13 4544341 SISTEMA,DIGIT;TIPO 3;E-PCM-008 UN 1,00 358.974,36 358.974,36 4552753 RETIF;B;380VCA/125VCC;25+25A UN 1,00 25.912,06 25.912,06 4565771 CABO,AL NU;A6201;315MM2;ELT001 KG 100,00 16,01 1.601,00 6770190 ALCA,DIST,266CAA/160CAL,D73002 UN 9,00 9,15 82,31 6770242 SEC,PREF;CERC;3,25-4,11;D75001 UN 120,00 1,43 171,36 6770255 ALCA,PREF;DIST;CU-NU120;D73001 UN 12,00 46,79 561,46 6770305 PARAF,CB QUAD;AZ;16X200;D41010 UN 32,00 2,89 92,40 6770306 PARAF,CB QUAD;AZ;16X250;D41010 UN 91,00 4,2 382,20 6770307 PARAF,CB QUAD;AZ;16X300;D41010 UN 101,00 4,88 493,13 6770308 PARAF,CB QUAD;AZ;16X350;D41010 UN 10,00 5,06 50,60 6770309 PARAF,CB QUAD;AZ;16X400;D41010 UN 40,00 6,8 272,05 6770310 PARAF,CB QUAD;AZ;16X450;D41010 UN 16,00 7,31 116,93 6770333 PARAF,CB QUAD;AZ;20X400;D41009 UN 29,00 11,95 346,54 6770350 PARAF,CB QUAD;AZ;12X250;D41011 UN 68,00 2,81 191,35 6770353 PARAF,CB QUAD;AZ;12X400;D41011 UN 6,00 2,92 17,51 6770560 PARAFUSO,CAB QUAD;CAZ;10X50;D- UN 20,00 1,31 26,25 6770594 PARAF,AUTO-ATAR;4,8X50;D41032 UN 180,00 0,06 11,34 6770597 PARAF,ROSC DP;AZ;16X400;D41028 UN 36,00 9,47 340,96 6770602 PARAF,ROSC DP;AZ;12X400;D41029 UN 6,00 9,28 55,69 6770615 BUCHA,NYLON;N-8;P/PARAF;4,8X50 UN 180,00 0,22 39,69 6770618 OLHAL,PARAF M16;AZ;D41005 UN 21,00 7,16 150,38 6770619 OLHAL,PARAF M20;ACO ZN;12000DA UN 9,00 27,07 243,62 6770623 PORCA,QUAD;CAZ;M12X1,50;D-4100 UN 54,00 0,24 13,04 6770626 PORCA,SEXT;CAZ;M16X2;D-41006 UN 76,00 0,42 31,92 6770631 ARRUELA,QUA;AZ; 50X5X22;D41003 UN 49,00 0,97 47,49 6770632 ARRUELA,QUA;AZ; 50X3X18;D41003 UN 318,00 0,5 159,97 6770633 ARRUELA,QUA;AZ; 38X3X14;D41003 UN 60,00 0,15 8,82 6770637 ARRUELA,PRESS;18X3X13,5;D41002 UN 30,00 0,55 16,38 6770638 ARRUELA,PRESS;24X4X17,5;D41002 UN 313,00 0,57 177,47 6770639 ARRUELA,PRESS;28X4X22;D41002 UN 9,00 0,59 5,29 6770644 ARRUELA,RED;AZ;22X2X12;D41001 UN 40,00 0,19 7,56 6770645 ARRUELA,RED;AZ;28X3X14;D41001 UN 106,00 0,19 20,03 6770646 ARRUELA,RED;AZ;36X3X18;D41001 UN 398,00 0,28 112,83 6770647 ARRUELA,RED;AZ;44X5X22;D41001 UN 9,00 0,95 8,51 6770653 ARRUELA,SEXT;FE NOD;ELET 1,1/2 UN 21,00 3,26 68,46 6770654 ARRUELA,SEXT;FE NOD;ELET 2 UN 8,00 5,81 46,45 6770677 POSTE,CONC;DT; 600/ 4,5M;ET300 UN 13,00 221,98 2.885,74 6770686 POSTE,CONC;DT; 300/ 9M;ET300 UN 11,00 436,91 4.805,96 6770709 POSTE,CONC;DT;1000/12M;ET300 UN 2,00 1.250,04 2.500,08 6770738 SUPORTE,CAPITEL;B-1;TC/TP;72,5 UN 8,00 97,47 779,76 6770765 SUPORTE,JAB;DUP;L;1630;D31031 UN 4,00 145,72 582,88 6770766 SUPORTE,JAB;DP;LT730B3;D31032 UN 6,00 131,62 789,72 6770768 VIGA,CON;120X170X3480;D31003 UN 6,00 184,88 1.109,28 6770772 VIGA,CON;120X170X4600;V;D31007 UN 4,00 243,36 973,44 6770776 VIGA,CON;120X170X3100;D31004 UN 18,00 165,98 2.987,64 6770782 ANEL,CONC;TRIPLO;B-3;D31021 UN 19,00 81 1.539,00 6770783 ANEL,CONC;TRIPLO;B-6;D31021 UN 25,00 81 2.025,00 6770785 VIGA,CON;230X310X7100;D31005 UN 11,00 445,24 4.897,64 6770799 POSTE,CONC;DT;1000/10,5M;ET300 UN 17,00 1.000,39 17.006,63 RELAÇÃO DE MATERIAIS
  • 81.
    6770856 CONEC,T;CU;240-300TR;95-120D UN9,00 151,75 1.365,75 6770857 CONEC,TER;RET;4F;A/C;6-750 UN 36,00 86,29 3.106,40 6770896 CONEC,T;CU;240-300TR/DR;D71015 UN 27,00 145,98 3.941,46 6770898 CONEC,FEND;CU;35-70TR;16-70DR UN 203,00 11,5 2.334,13 6770899 CONEC,FEND;CU;50-185TR;ET710 UN 3,00 9,04 27,12 6770903 CONEC,T;CU; 95-120TR/DR;ET710 UN 27,00 97,55 2.633,85 6770940 CONEC,SUP;AL;266/160;TB3/8-1/2 UN 6,00 65,08 390,47 6770946 CONECTOR,SUPORTE;CU 120-500;D- UN 48,00 84,54 4.057,81 6770949 CONEC,ATERR;CU;16-70;D71025 UN 131,00 15,57 2.039,87 6770964 GRAMPO,ANC;TERM;CU 120-240;D-7 UN 9,00 163,8 1.474,20 6770968 CONCHILHA,AZ;8000DAN;D51012 UN 9,00 14,56 131,07 6770972 GANCHO BOLA;AZ;12000DAN;D51019 UN 9,00 15,25 137,21 6770976 MANILHA,SAPAT;AZ;5000D;D51003 UN 12,00 6,28 75,35 6770977 MANILHA,AZ;16MM;12000;D51011 UN 30,00 20,69 620,55 6771008 PÁRA-RAIO,ESTAÇÃO;C1;60KV;E155 UN 6,00 6.362,54 38.175,23 6771010 PARA-RAIO,ESTAÇÃO;C2;12KV;E155 UN 3,00 499,72 1.499,15 6771012 HASTE,PR;50X6X4500MM;D15710 UN 15,00 201,32 3.019,75 6771023 BASE,RELE FOTOELETRICO;D60402 UN 11,00 6,92 76,11 6771027 BRACO,AZ;LUM;250/400W;2500MM UN 22,00 34,17 751,67 6771031 RELIG,15KV;560A;16KA;SR;EMT004 UN 3,00 36.540,78 109.622,34 6771038 CAIXA,DRV;AL;T;1,1/2;D64102 UN 3,00 12,44 37,33 6771039 CAIXA,DRV;AL;LL;1,1/2;D64102 UN 2,00 12,97 25,94 6771040 CAIXA,LIG;RET;AL;TP/TC;D64105 UN 3,00 243,14 729,41 6771067 ISOL,C 6;DISC;VD;SE;D175;ET500 UN 63,00 24,12 1.519,47 6771068 ISOL,C 8;DISC;VID;E280;ET500 UN 54,00 70,13 3.786,99 6771074 ISOL,C10;PED;PORC;15KV;ET500 UN 24,00 142,07 3.409,56 6771169 DISJ,TM;3P;100A;380V/5KA;EBT04 UN 1,00 149,86 149,86 6771172 DISJ,TM;3P;150A;380V/10KA;EBT4 UN 1,00 208,41 208,41 6771181 DISJ,72,5KV-25KA;1250A;ESE002 UN 1,00 59.314,50 59.314,50 6771190 ELET,PVC; 3/4;VARA 3M;D65101 UN 20,00 3,92 78,33 6771191 ELET,PVC;1;VARA3M;D65101 UN 42,00 4,78 200,66 6771192 ELET,PVC;1,1/2;VARA3M;D65101 UN 22,00 10,05 221,10 6771193 ELET,PVC;2;VARA3M;D65101 UN 9,00 16,59 149,31 6771199 LUVA,ELET PVC RIG; 3/4;D65102 UN 30,00 0,54 16,07 6771200 LUVA,ELETPVC RIG;1;D65102 UN 72,00 0,51 37,04 6771201 LUVA,ELET PVC RIG;1,1/2;D65102 UN 50,00 1,46 73,00 6771202 LUVA,ELETPVC RIG;2;D65102 UN 22,00 1,96 43,20 6771208 CURVA,90;ELETPVC 3/4;D65103 UN 10,00 1,29 12,92 6771209 CURVA,90;ELETPVC 1;D65103 UN 19,00 1,44 27,33 6771210 CURVA,90;ELETPVC 1,1/2;D65103 UN 25,00 2,04 51,00 6771211 CURVA,90;ELETPVC 2;D65103 UN 13,00 3,79 49,28 6771302 DISJ,TM;3P; 10A;380V/5A;FP UN 1,00 43,4 43,40 6771313 HASTE,ATER;CIRC;13X2000;D80001 UN 12,00 29,02 348,26 6771314 HASTE,ATER;CIRC;17X3000;D80003 UN 4,00 59,77 239,06 6771341 PARA-RAIO,C3;12KV;110KV;ET155 UN 18,00 148,84 2.679,08 6771384 BUCHA,BAQ;SEXT;ELET 1;D64125 UN 22,00 3,27 71,84 6771385 BUCHA,BAQ;SEXT;ELET 1,1/2 UN 21,00 5,74 120,54 6771386 BUCHA,BAQ;SEXT;ELET2;D64125 UN 8,00 5,85 46,79 6771462 SEC,3P;72,5-1250-MACHB;ESE004 UN 1,00 19.194,00 19.194,00 6771473 SEC,3P;15-630-MALHA;C1;ESE006 UN 3,00 6.935,31 20.805,94 6771478 SEC,1P;15-630-MAVVA;C7;ESE006 UN 21,00 684,06 14.365,35 6771499 CABO,CU NU;120MM2;MD;D21001 KG 45,00 30,17 1.357,65 6771504 CABO,CU NU; 70MM2;MD;EMT003 KG 1,40 30,17 42,24 6771511 CABO,CU NU;240MM2;MD;D21001 KG 300,00 30,17 9.051,00 6771522 CABO,ACO-CU;ATERR;7X10;D80502 KG 36,00 29,88 1.075,79 6771562 CABO,CU ISOL;XLPE;120MM2 M 4,00 22,43 89,71 6771574 CABO,CU BLIN;CONT; 2X4;ET206 M 150,00 17,39 2.608,50 6771575 CABO,CU BLIN;CONT; 4X4;ET206 M 150,00 23,7 3.555,00 6771623 TRAFO,3F; 75KVA;14,4;EMT009 UN 1,00 6.008,40 6.008,40 6771684 TC,EXT;C1;72,6KV;200/,,1200-5- UN 3,00 16.961,96 50.885,89 6771685 TC,EXT;C3;15KV;150/,,,/800-5-5 UN 3,00 1.937,33 5.812,00 6771730 LUM,FECH;AL;LAMP INCAND;100W;1 UN 10,00 40,78 407,82 6771762 REATOR,AZ;NA;150W;IG;EX;D60103 UN 22,00 38,7 851,47 6771773 LAMP,NA;150W;TUB;E40;D60603 UN 22,00 11,34 249,48 6771829 CANTON,L;AZ; 40X5X250;D43521 UN 22,00 10,54 231,92 6771837 CANTON,U;AZ; 50X310X430;D43531 UN 16,00 42,18 674,86 6771845 CANTON,L;AZ;75X10X450;D43525 UN 12,00 50,34 604,04 6771856 CHAPA,FIX;AZ;450X60X12;D43550 UN 2,00 26,6 53,19 6771896 ABRAC,UNHA; 20(1/2);D65520 UN 65,00 0,78 50,51 6771897 ABRAC,UNHA; 25(3/4);D65520 UN 20,00 1,79 35,70 6771901 ABRAC,UNHA; 32(1);D65520 UN 46,00 2,42 111,09 6771902 ABRAC,UNHA; 50(1,1/2);D65520 UN 14,00 2,59 36,31 6771903 ABRAC,UNHA; 60(2);D65520 UN 7,00 4,62 32,34 6771910 CHAPA,CURVA;22MM;ATERR;D80020 UN 9,00 6,98 62,84 6771911 CHAPA,CURVA;18MM;ATERR;D80020 UN 21,00 6,65 139,58 6771912 CHAPA,CURVA;14MM;ATERR;D80020 UN 35,00 6,33 221,60 6773731 CONEC,ATERR;CU;70-120;ET-710 UN 1,00 15,57 15,57 6773976 DISJ,15KV;C1; 630A;16KA;S/R UN 1,00 52.682,18 52.682,18 6775610 CHAVE,FUS;24KV;C;400A;VG;13502 UN 3,00 131,38 394,13 6775622 CAIXA,LIG;RET;AL;TSA;D64105 UN 2,00 223,09 446,19 6778563 CABO,ACO-CU;ATERR;7X 7;D80502 KG 270,96 27,6 7.479,72 6781312 LUM,FECH;IP2;150W;EQ,IN;D60050 UN 22,00 176,38 3.880,34 6782788 CABO,ACO-CU;ATERR;7X 6;D80502 KG 303,38 27,6 8.373,30 6783547 ISOL,SUP;C17;72,5KV;D260;ET500 UN 6,00 700,31 4.201,85 6787719 RELE,RFO;220V;1000W;S/B;D60401 UN 11,00 12,63 138,95
  • 82.
    6791523 CONEC,SUP;LIG AL;120-315;ET710UN 6,00 84,54 507,24 TOTAL (A) 1.458.592,38 Código Descrição Qtde Pr. Unit Pr. Total 99040101 OBRA SE;FINCAMENTO OU ARRANCAMENTO POSTE ATÉ 14M;EXCETO ROCHA 43,00 635,92 27.344,56 99040103 OBRA SE;INSTALAÇÃO OU DESATIV DE ANÉIS OU SUPORTES (JABAQUARA OU CAPITEIS) 62,00 141,13 8.750,06 99040104 OBRA SE;INSTALAÇÃO OU DESATIVAÇÃO DE VIGAS E CRUZETAS 39,00 89,75 3.500,25 99040201 OBRA SE;LANÇAMENTO E NIVELAMENTO DE CABO DE COBRE OU ALUMÍNIO NÚ 415,00 28,22 11.711,30 99040203 OBRA SE;ILANÇAMENTO OU DESATIVAÇÃO DE CONDUTOR ISOLADO ATÉ 1000 V 300,00 2,25 675,00 99040301 OBRA SE;INST OU RETIR TRAFO DE POT ATÉ 7,5 MVA OU REGULADOR DE TENSÃO TRIF 1,00 16.800,00 16.800,00 99040303 OBRA SE;INST OU RETIR DE TSA;CONJ DE MED;TRAFO POTEN OU CORRENTE;PR 72,5 13,00 290,18 3.772,34 99040304 OBRA SE;INST OU RETIR DE PARA-RAIO 72,5 KV 1,00 133,71 133,71 99040305 OBRA SE;INST OU RETIR DE PR ESTACAO;TIPO DISTRIB 15K;CHAVE ÓLEO UNIP 15KV 6,00 29,79 178,74 99040307 OBRA SE;INST OU RETIR DE DJ 15;RELIG;CH OLEO 3P;REG M 4,00 881,87 3.527,48 99040308 OBRA SE;INST OU RETIR DE SECIONADOR TRIPOLAR 72,5KV 2,00 3.203,42 6.406,84 99040309 OBRA SE;INST OU RETIR DE SECIONADOR TRIPOLAR 15 KV 4,00 2.136,36 8.545,44 99040310 OBRA SE;INST OU RETIR DE SEC UNIP;SEC FUS;CH TANDEM 27,00 70,00 1.890,00 99040312 OBRA SE;INST OU RETIR DE BANCO DE BATERIA 1,00 433,59 433,59 99040313 OBRA SE;INST OU RETIR DE RETIF 3F OU QUADRO COMANDO/PROTECAO (1PAINEL) 1,00 395,19 395,19 99040316 OBRA SE;INST OU RETIR DE LUMINÁRIAS OU TOMADAS 36,00 11,84 426,24 99040402 OBRA SE;ATER/BLIND;LANÇ CABO ATERR AÉREO NU/ISOL 800,00 23,70 18.960,00 99040405 OBRA SE;ATER/BLIND;INSTAL/RETIR HASTE PARA-RAIO 15,00 70,00 1.050,00 99040403 OBRA SE;ATER/BLIND;CRAVAMENTO HASTES NORMAIS 4,00 27,09 108,36 99040406 OBRA SE;ATER/BLIND;EXECUÇÃO DE SOLDA EXOTÉRMICA 142,00 18,94 2.689,48 99040501 OBRA SE;ACESSORIOS;OBRA SE;INST OU RETIR DE CADEIA ISOLADORES 54,00 19,81 1.069,74 99040701 OBRA SE;LANÇAMENTO ELETRODUTOS VERTICAIS 273,00 3,39 925,47 99040801 OBRA SE;INTERLIG DE DISJUNTOR 72,5/15;RELIG;BANCO DE CAPAC;TRAFO POT;RETIF 7,00 208,89 1.462,23 99040802 OBRA SE;INTERLIG DE TP;TC;TSA;PONTO DE CONEX TRIFASICA 5,00 70,00 350,00 99040803 OBRA SE;INTERLIG QUAD COM/PROT DJ 72,5;QUAD COM/CONT SERV AUX 1P RETIF QCC 2,00 835,80 1.671,60 99040805 OBRA SE;INST OU INTERLIG CAIXA LIG TP E TC 72,5KV E 15 KV 4,00 302,60 1.210,40 MO1 SERVIÇOS DE OBRAS CIVIS 27.857,00 14,00 389.998,00 07010201 SE PEQUENO PORTE - PROJETO 1,00 42.000,00 42.000,00 07010202 SE PEQUENO PORTE -FISCALIZAÇÃO 1,00 21.000,00 21.000,00 07010203 SE PEQUENO PORTE -COMISSIONAMENTO 1,00 25.200,00 25.200,00 TOTAL (B) 598.559,72 ADM 0,00 ENG 148.611,13 TRA 1.608,00 TOTAL (C) 150.219,13 ADMINISTRAÇÃO ENG/SUP TRANSPORTE Mão-de-Obra OUTROS GASTOS
  • 83.
    APÊNDICE C (PLANTAS DOPROJETO ELETROMECÂNICO DA SE 69/13,8 KV UFC – CAMPUS DO PICI)
  • 122.
    ANEXO A (DETALHES DEINSTALAÇÃO E MONTAGEM DE EQUIPAMENTO E MATERIAIS 72,5 – 15 KV)
  • 123.
    ! #$ % ' ( ) % * KS 130 150 200 250
  • 124.
    Desenhista Substitui Des. Nº Verificado Código/ Página Escala Desenho Nº Folha: Aprovado COELCE Companhia Energética do Ceará 05/162 TRANSFORMADOR DE POTÊNCIA 69/13,8 kV DETALHES DE INSTALAÇÃO E MONTAGEM PS-052 S/E 052.01.0 2/2 PEDRO PAULO KEYLA 20 02 03 20 02 03 RELAÇÃO DE MATERIAL REF UNID QUANTIDADE CÓDIGO ESTOQUE DESCRIÇÃO DO MATERIAL C-3 KG 03 6771504 CABO CU NU 70mm² 19 FIOS MD DES-210.01 C-14 M 04 6771562 CABO, CU ISOL, XLPE, 0,6/1 kV, 120 mm 2 DES-204.03 (NOTA 1) C-15 M 04 6771729 CABO, CU ISOL, XLPE, 0,6/1 kV, 240 mm 2 DES-204.03 (NOTA 1) D-1 UM 01 6771193 ELETRODUTO PVC RIG ROSQ 2” 3 m DES-651.01 D-3 UM 02 6771191 ELETRODUTO PVC RIG ROSQ 1” 3 m DES-651.01 D-5 UMA 04 6771211 CURVA, 90GR, PVC RIG, ELET 2” DES-651.03 D-9 UMA 08 6771202 LUVA ELETRODUTO PVC RIG ROSQ 2” DES-651.02 D-11 UMA 01 6771200 LUVA ELETRODUTO PVC RIG ROSQ 1” DES-651.02 D-19 UMA 03 6771386 BUCHA, BAQ, SEXT, FIX ELET 2” DES-641.25 D-22 UMA 03 6770654 ARRUELA SEXT FE NODULAR ELET 2” DES-641.20 D-23 UMA 04 0090011 UNIÃO MACHO-FÊMEA AÇO ZINC ELET 2” D-27 M 02 0090008 ELETRODUTO, MET, FLEX, PVC 2” DES- 641.50 D-29 UM 08 0090005 CONECTOR MACHO-FIXO, LATÃO ELET 2” D-37 UM 01 0090001 CABEÇOTE, BAQ, ELET/CX MED, 1” DES-435.10 T-7 UM 04 4543476 PÓ, SOLDA, CARTUCHO 90 g DES-820.40 RELAÇÃO DE TRANSFORMADORES DE POTÊNCIA 69/13,8 kV REF UNID QUANT E-SE-001 (TIPOS) CÓDIGO ESTOQUE DESCRIÇÃO DO EQUIPAMENTO C1 4544185 TRANSFORMADOR POTÊNCIA, C1 5/6,25 MVA E-SE-001 C2 4544202 TRANSFORMADOR POTÊNCIA, C2 5/6,25/7,5 MVA E-SE-001 C3 4544204 TRANSFORMADOR POTÊNCIA, C3 10/12,5/15 MVA E-SE-001 E-1 UM 01 C4 4544186 TRANSFORMADOR POTÊNCIA, C4 20/26,6/33,2 MVA E-SE-001 RELAÇÃO DOS TC’s DE BUCHA DO TRANSFORMADOR POTÊNCIA DO TRANSFORMADOR (MVA) RELAÇÃO DO TC DE BUCHA DE 69 kV CLASSE DE EXATIDÃO DO TC DE BUCHA DE 69 kV RELAÇÃO DO TC DE BUCHA DE 13,8 kV CLASSE DE EXATIDÃO DO TC DE BUCHA DE 13,8 kV IMPEDÃNCIA PERCENTUAL 5/6,25 5/6,25/7,5 200/400/600/800-5 A 200/400/600/800-5 A 10/12,5/15 400/600/800/1200-5 A 400/600/800/1200-5 A 7 % 20/26,6/33,2 800/1200/1400/1600/1800/2000-5 A 10B400 600/800/1200/1400/1600/2000-5 A 10B400 13 % Notas: 1- O cabo C-14 é utilizado nas subestações de pequeno porte, enquanto que o cabo C-15 é utilizado nas subestações de grande porte.
  • 125.
    ! #$ % ' ( ) % *
  • 126.
    Desenhista Substitui Des. Nº Verificado Código/ Página Escala Desenho Nº Folha: Aprovado COELCE Companhia Energética do Ceará 07/162 DISJUNTOR TRIPOLAR 72,5 kV DETALHES DE INSTALAÇÃO E MONTAGEM PS-052 S/E 052.02.0 2/2 PEDRO PAULO KEYLA 20 02 03 20 02 03 RELAÇÃO DE MATERIAL REF UNID QUANTIDADE CÓDIGO ESTOQUE DESCRIÇÃO DO MATERIAL C-3 KG 02 6771504 CABO CU NU 70mm² 19 FIOS MD DES-210.01 D-2 UM 02 6771192 ELETRODUTO PVC RIG ROSQ 1.1/2” 3m DES-651.01 D-6 UMA 03 6771210 CURVA, 90GR, PVC RIG, ELET 1.1/2” DES-651.03 D-10 UMA 06 6771201 LUVA ELETRODUTO PVC RIG ROSQ 1.1/2” DES-651.02 D-18 UMA 03 6771385 BUCHA, BAQ, SEXT, FIX ELET 1.1/2” DES-641.25 D-21 UMA 03 6770653 ARRUELA SEXT FE NODULAR ELET 1.1/2” DES-641.20 O-30 UM 06 6770857 CONECTOR TERM, RETO, 4F, AL/CU, 6-750 MCM DES-710.18 T-7 UM 01 4543476 PÓ, SOLDA, CARTUCHO 90 g DES-820.40 RELAÇÃO DOS DISJUNTORES TRIPOLAR DE 72,5 kV REF UNID QUANT E-SE-002 (TIPOS) CÓDIGO ESTOQUE DESCRIÇÃO DO EQUIPAMENTO E-2 C1 6771181 DISJUNTOR, 72,5 kV, C1, 1600 A, 20 kA E-SE-002 E-38 UM 01 C2 6771180 DISJUNTOR, 72,5 kV, C2, 2000 A, 31,5 kA E-SE-002
  • 130.
    ! #$ % ' ( ) % *
  • 131.
    Desenhista Substitui Des. Nº Verificado Código/ Página Escala Desenho Nº Folha: Aprovado COELCE Companhia Energética do Ceará 12/162 TRANSFORMADORES DE CORRENTE 72,5 kV DETALHES DE INSTALAÇÃO E MONTAGEM PS-052 S/E 052.03.0 5/5 PEDRO PAULO KEYLA 20 02 03 20 02 03 RELAÇÃO DE MATERIAL REF UNID QUANTIDADE CÓDIGO ESTOQUE DESCRIÇÃO DO MATERIAL C-3 KG 06 6771504 CABO CU NU 70mm² 19 FIOS MD DES-210.01 D-2 UM 05 6771192 ELETRODUTO PVC RIG ROSQ 1.1/2” 3m DES-651.01 D-6 UMA 06 6771210 CURVA, 90GR, PVC RIG, ELET 1.1/2” DES-651.03 D-10 UMA 12 6771201 LUVA ELETRODUTO PVC RIG ROSQ 1.1/2” DES-651.02 D-16 UMA 01 6771040 CAIXA, LIG, RET, EQUIP TEMPO, LIGA AL, ITEM 1 DES-641.05 D-18 UMA 03 6771385 BUCHA , BAQ, SEXT, FIX ELET 1.1/2” DES-641.25 D-21 UMA 03 6770653 ARRUELA SEXT FE NODULAR ELET 1.1/2” DES-641.20 D-24 UMA 06 0090010 UNIÃO, MACHO-FÊMEA, AÇO ZINC, ELET 1.1/2” D-28 M 03 0090007 ELETRODUTO, MET, FLEX, PVC, 1.1/2” DES-641.50 D-30 UM 03 0090004 CONECTOR, MACHO-FIXO, LATÃO, ELET 1.1/2” F-2 UMA 12 6770632 ARRUELA QUAD, AÇO ZINC, 50x3x18mm DES-410.03 F-5 UMA 08 6770645 ARRUELA RED, AÇO ZINC, 28x3x14mm DES-410.01 F-6 UMA 12 6770646 ARRUELA RED, AÇO ZINC, 36x3x18mm DES-410.01 F-10 UMA 04 6771837 CANTONEIRA, AÇO ZINC, U-50x38x5x310x430mm DES-435.31 F-12 UMA 02 6771829 CANTONEIRA , AÇO ZINC, L-40x5x250mm DES-435.21 F-24 UM 12 6770307 PARAFUSO, CAB QUAD, AÇO ZINC, M16x300 DES-410.10 F-29 UM 04 6770350 PARAFUSO, CAB QUAD, AÇO ZINC, M12x250 DES-410.11 F-34 UM 06 6770594 PARAFUSO, AUTO-ATAR, CAB CIL, 4,8x50 DES-410.32 F-47 UM 04 6770560 PARAFUSO, CAB QUAD, AÇO ZINC, M10x50 DES-410.12 F-56 UMA 08 6770644 ARRUELA RED, AÇO ZINC, 22x2x12mm DES-410.01 L-12 UMA 02 0090020 RÉGUA , BORNES, TERM, BAQ, 12 POLOS 600V/15 A L-15 UMA 06 6771902 ABRAÇADEIRA ,UNHA , 50 (1.1/2”) D10,5 DES-655.20 N-1 UMA 06 6770615 BUCHA, NYLON, S-8, P/PARAF 4,8x50 mm O-12 UM 01 6770949 CONECTOR, ATERR, CU, 16-70mm 2 DES-710.25 O-13 UM 01 6770898 CONECTOR FEND, CU, 35-70mm 2 TR, 16-70mm 2 DR DES-710.35 O-30 UM 06 6770857 CONECTOR TERM, RETO, 4F, AL/CU, 6-750 MCM DES-710.18 (NOTA 1) O-31 UM 06 4543915 CONECTOR TERM, RETO, 2F, AL/CU 6-750MCM DES-710.17 (NOTA 1) T-3 UMA 01 6771912 CHAPA, CURVA, ATERR, CAZ, D=14 mm DES-800.20 T-7 UM 03 4543476 PÓ, SOLDA, CARTUCHO 90 g DES-820.40 RELAÇÃO DE TRANSFORMADORES DE CORRENTE 72,5 kV REF UNID QUANT E-SE-005 (TIPOS) CÓDIGO ESTOQUE DESCRIÇÃO DO EQUIPAMENTO E-8 C1 6771684 TC EXT, 72,5 kV, C1, 200/400/600x400/800/1200-5-5A E-SE-005 (NOTA 2) E-39 C2 6771692 TC EXT, 72,5 kV, C2, 100/200/300x200/400/600-5A E-SE-005 (NOTA 2) E-46 UM 03 C3 6775626 TC EXT, 72,5 kV, C3, 600/800/1000x1200/1600/2000-5A E-SE-005 (NOTA 2) Notas: 1- Os conectores O-30 serão utilizados nos TC’s tipo C1, os O-31 nos TC’s tipo C2; 2- O TC tipo C1e C3 são utilizados para proteção e medição, o tipo C2 é utilizado para medição de faturamento.
  • 136.
    Desenhista Substitui Des. Nº Verificado Código/ Página Escala Desenho Nº Folha: Aprovado COELCE Companhia Energética do Ceará 17/162 TRANSFORMADORES DE POTENCIAL 72,5 kV DETALHES DE INSTALAÇÃO E MONTAGEM PS-052 S/E 052.04.0 5/5 PEDRO PAULO KEYLA 20 02 03 20 02 03 RELAÇÃO DE MATERIAL REF UNID QUANTIDADE CÓDIGO ESTOQUE DESCRIÇÃO DO MATERIAL C-3 KG 06 6771504 CABO CU NU 70mm² 19 FIOS MD DES-210.01 D-1 UM 01 6771193 ELETRODUTO PVC RIG ROSQ 2” 3m DES-651.01 D-2 UM 04 6771192 ELETRODUTO PVC RIG ROSQ 1.1/2” 3m DES-651.01 D-5 UMA 02 6771211 CURVA, 90GR, PVC RIG, ELET 2” DES-651.03 D-6 UMA 03 6771210 CURVA, 90GR, PVC RIG, ELET 1.1/2” DES-651.03 D-9 UMA 04 6771202 LUVA ELETRODUTO PVC RIG ROSQ 2” DES-651.02 D-10 UMA 06 6771201 LUVA ELETRODUTO PVC RIG ROSQ 1.1/2” DES-651.02 D-16 UMA 01 6771040 CAIXA, LIG, RET, EQUIP TEMPO, LIGA AL, ITEM 1 DES-641.05 D-19 UMA 02 6771386 BUCHA, BAQ, SEXT, FIX ELET 2” DES-641.25 D-22 UMA 02 6770654 ARRUELA SEXT FE NODULAR ELET 2” DES-641.20 D-24 UMA 06 0090010 UNIÃO, MACHO-FÊMEA, AÇO ZINC, ELET 1.1/2” D-28 M 03 0090007 ELETRODUTO, MET, FLEX, PVC, 1.1/2” DES-641.50 D-30 UM 03 0090004 CONECTOR, MACHO-FIXO, LATÃO, ELET 1.1/2” F-2 UMA 12 6770632 ARRUELA QUAD, AÇO ZINC, 50x3x18mm DES-410.03 F-5 UMA 08 6770645 ARRUELA RED, AÇO ZINC, 28x3x14mm DES-410.01 F-6 UMA 12 6770646 ARRUELA RED, AÇO ZINC, 36x3x18mm DES-410.01 F-10 UMA 04 6771837 CANTONEIRA, AÇO ZINC, U-50x38x5x310x430mm DES-435.31 F-12 UMA 02 6771829 CANTONEIRA, AÇO ZINC, L-40x5x250mm DES-435.21 F-24 UM 12 6770307 PARAFUSO, CAB QUAD, AÇO ZINC, M16x300 DES-410.10 F-29 UM 04 6770350 PARAFUSO, CAB QUAD, AÇO ZINC, M12x250 DES-410.11 F-34 UM 06 6770594 PARAFUSO, AUTO-ATAR, CAB CIL, 4,8x50 DES-410.32 F-47 UM 04 6770560 PARAFUSO, CAB QUAD, AÇO ZINC, M10x50 DES-410.12 F-56 UMA 08 6770644 ARRUELA RED, AÇO ZINC, 22x2x12mm DES-410.01 L-12 UMA 01 0090020 RÉGUA , BORNES, TERM, BAQ, 12 POLOS 600V/15 A L-15 UMA 06 6771902 ABRAÇADEIRA ,UNHA , 50 (1.1/2”) D10,5 DES-655.20 N-1 UMA 06 6770615 BUCHA, NYLON, S-8, P/PARAF 4,8x50 mm N-3 UM 01 6771302 DISJUNTOR, BT, 3P, 10 A, 380 V/ 5 kA, C/FIX O-12 UM 01 6770949 CONECTOR, ATERR, CU, 16-70mm 2 DES-710.25 O-13 UM 01 6770898 CONECTOR FEND, CU, 35-70mm 2 TR, 16-70 mm 2 DR DES-710.35 O-31 UM 03 4543915 CONECTOR TERM, RETO, 2F, AL/CU 6-750MCM DES-710.17 T-3 UMA 01 6771912 CHAPA, CURVA, ATERR, CAZ, D=14 mm DES-800.20 T-7 UM 06 4543476 PÓ, SOLDA, CARTUCHO 90 g DES-820.40 RELAÇÃO DE TRANSFORMADORES DE POTENCIAL 72,5 kV REF UNID QUANT E-SE-005 (TIPOS) CÓDIGO ESTOQUE DESCRIÇÃO DO EQUIPAMENTO E-6 C4 6771665 TP EXT, 72,5 KV, C3, 69/1,73; 2x115-115/1,73 E-SE-005 (NOTA 1) E-40 UM 03 C5 6771658 TP EXT, 72,5 KV, C4, 69/1,73; 1x115-115/1,73 E-SE-005 (NOTA 1) Notas: 1- O TP tipo C3 é utilizado para proteção e medição, o tipo C4 é utilizado para medição de faturamento.
  • 139.
    Desenhista Substitui Des. Nº Verificado Código/ Página Escala Desenho Nº Folha: Aprovado COELCE Companhia Energética do Ceará 20/162 PÁRA-RAIOS TIPO ESTAÇÃO – 72 kV MONTAGEM VÃO EL/SL DETALHES DE INSTALAÇÃO E MONTAGEM PS-052 S/E 052.05.0 3/3 PEDRO PAULO KEYLA 20 02 03 20 02 03 RELAÇÃO DE MATERIAL REF UNID QUANTIDADE CÓDIGO ESTOQUE DESCRIÇÃO DO MATERIAL C-3 KG - 6771504 CABO CU NU 70mm² 19 FIOS MD DES-210.01 C-16 M 29 6771561 CABO, CU, ISOL, XLPE, 0,6/1kV, 70 mm DES-204.03 D-36 UMA 20 6771896 ABRAÇADEIRA UNHA 20(1/2”) D7 DES-655.20 F-6 UMA 24 6770646 ARRUELA RED, AÇO ZINC, 36x3x18mm DES-410.01 F-7 UMA 12 6770638 ARRUELA PRESS, AÇO ZINC, 24x4x17,5mm DES-410.02 F-26 UM 12 6770309 PARAFUSO, CAB QUAD, AÇO ZINC, M16x400 DES-410.10 F-34 UM 20 6770594 PARAFUSO, AUTO-ATAR, CAB CIL, 4,8x50 DES-410.32 F-63 UMA 06 6771845 CANTONEIRA, AÇO ZINC, L-75x10x450mm DES-435.25 N-1 UMA 20 6770615 BUCHA NYLON, S-8, P/PARAF 4,8x50 mm T-7 UM 03 4543476 PÓ, SOLDA, CARTUCHO 90 g DES-820.40 RELAÇÃO DE PÁRA-RAIOS TIPO ESTAÇÂO – 72 kV MONTAGEM VÃO EL/SL REF UNID QUANT ET-155 (TIPO) CÓDIGO ESTOQUE DESCRIÇÃO DO EQUIPAMENTO E-7 UM 03 C1 6771008 PÁRA-RAIOS, ESTAÇÃO, 72 kV, C1, 10 kA ET-155
  • 142.
    Desenhista Substitui Des. Nº Verificado Código/ Página Escala Desenho Nº Folha: Aprovado COELCE Companhia Energética do Ceará 23/162 PÁRA-RAIOS TIPO ESTAÇÃO – 72 kV MONTAGEM VÃO TR DETALHES DE INSTALAÇÃO E MONTAGEM PS-052 S/E 052.06.0 3/3 PEDRO PAULO KEYLA 20 02 03 20 02 03 RELAÇÃO DE MATERIAL REF UNID QUANTIDADE CÓDIGO ESTOQUE DESCRIÇÃO DO MATERIAL C-3 KG - 6771504 CABO CU NU 70mm² 19 FIOS MD DES-210.01 C-16 M 39 6771561 CABO, CU, ISOL, XLPE, 0,6/1 kV, 70 mm DES-204.03 D-36 UMA 26 6771896 ABRAÇADEIRA UNHA 20(1/2”) D7 DES-655.20 F-6 UMA 24 6770646 ARRUELA RED, AÇO ZINC, 36x3x18mm DES-410.01 F-7 UMA 12 6770638 ARRUELA PRESS, AÇO ZINC, 24x4x17,5mm DES-410.02 F-24 UM 12 6770307 PARAFUSO, CAB QUAD, AÇO ZINC, M16x300 DES-410.10 F-34 UM 26 6770594 PARAFUSO, AUTO-ATAR, CAB CIL, 4,8x50 DES-410.32 F-63 UMA 06 6771845 CANTONEIRA, AÇO ZINC, L-75x10x450mm DES-435.25 N-1 UMA 26 6770615 BUCHA NYLON, S-8, P/PARAF 4,8x50 mm T-7 UM 03 4543476 PÓ, SOLDA, CARTUCHO 90 g DES-820.40 RELAÇÃO DE PÁRA-RAIOS TIPO ESTAÇÃO – 72 kV MONTAGEM VÃO TR REF UNID QUANT ET-155 (TIPO) CÓDIGO ESTOQUE DESCRIÇÃO DO EQUIPAMENTO E-7 UM 03 C1 6771008 PÁRA-RAIOS, ESTAÇÃO, 72 kV, C1, 10 kA ET-155
  • 145.
    ! #$ % ' ( ) % *
  • 146.
    ! #$ % ' ( ) % *
  • 147.
    Desenhista Substitui Des. Nº Verificado Código/ Página Escala Desenho Nº Folha: Aprovado COELCE Companhia Energética do Ceará 28/162 SECIONADOR TRIPOLAR – 72,5 kV MONTAGEM HORIZ. ALTA, ABERTURA LATERAL, C/LT PS-052 S/E 052.07.0 5/5 PEDRO PAULO KEYLA 20 02 03 20 02 03 RELAÇÃO DE MATERIAL REF UNID QUANTIDADE CÓDIGO ESTOQUE DESCRIÇÃO DO MATERIAL C-3 KG 4,7 6771504 CABO CU NU 70mm² 19 FIOS MD DES-210.01 D-3 UM 01 6771191 ELETRODUTO PVC RIG ROSQ 1” DES-651.01 D-7 UMA 02 6771209 CURVA, 90GR, PVC RIG, ELET 1” DES-651.03 D-11 UMA 04 6771200 LUVA ELETRODUTO PVC RIG ROSQ 1” DES-651.02 D-25 UMA 02 0090009 UNIÃO, MACHO-FÊMEA, AÇO ZINC, ELET 1” F-2 UMA 16 6770632 ARRUELA QUAD, AÇO ZINC, 50x3x18mm DES-410.03 F-6 UM 16 6770646 ARRUELA RED, AÇO ZINC, 36x3x18mm DES-410.01 F-7 UM 16 6770638 ARRUELA PRESS, AÇO ZINC, 24x4x17,5mm DES-410.02 F-46 UM 16 6770310 PARAFUSO, CAB QUAD, AÇO ZINC, M16x450 DES-410.10 O-12 UM 02 6770949 CONECTOR, ATERR, CU, 16-70mm 2 DES-710.25 O-13 UM 03 6770898 CONECTOR FEND, CU, 35-70mm 2 TR, 16-70mm 2 DR DES-710.35 O-30 UM 06 6770857 CONECTOR TERM, RETO, 4F, AL/CU, 6-750MCM DES-710.18 T-7 UM 07 4543476 PÓ, SOLDA, CARTUCHO 90 g DES-820.40 RELAÇÃO DE SECIONADORES TRIPOLAR – 72,5 kV MONTAGEM HORIZ. ALTA, ABERTURA LATERAL, C/LT REF UNID QUANT E-SE-004 (TIPOS) CÓDIGO ESTOQUE DESCRIÇÃO DO EQUIPAMENTO C1 4544141 SEC, TRIP, 72,5 kV, C1A, 1250 A, HLMACLT E-SE-004 (*) E-3 C4 6771463 SEC, TRIP, 72,5 kV, C4A, 1250 A, HLMOCLT E-SE-004 (*) C7 6771466 SEC, TRIP, 72,5 kV, C7A, 2000 A, HLMACLT E-SE-004 (*) E-41 UMA 01 C9 6771470 SEC, TRIP, 72,5 kV, C9A, 2000 A, HLMOCLT E-SE-004 (*) (*) LEGENDA: C1A – Chave Tipo C1 Alta C4A – Chave Tipo C4 Alta C7A – Chave Tipo C7 Alta C9A – Chave Tipo C9 Alta HLMACLT – Montagem Horizontal Alta, Abertura Lateral, Manual, Com Lâmina de Terra HLMOCLT – Montagem Horizontal Alta, Abertura Lateral, Motorizada, Com Lâmina de Terra
  • 151.
    ! #$ % ' ( ) % *
  • 152.
    Desenhista Substitui Des. Nº Verificado Código/ Página Escala Desenho Nº Folha: Aprovado COELCE Companhia Energética do Ceará 43/162 SECIONADOR TRIPOLAR – 72,5 kV MONTAGEM HORIZ. BAIXA, ABERTURA LATERAL, S/LT PS-052 S/E 052.10.0 5/5 PEDRO PAULO KEYLA 20 02 03 20 02 03 RELAÇÃO DE MATERIAL REF UNID QUANTIDADE CÓDIGO ESTOQUE DESCRIÇÃO DO MATERIAL C-3 KG 2,8 6771504 CABO CU NU 70mm² 19 FIOS MD DES-210.01 D-3 UM 01 6771191 ELETRODUTO PVC RIG ROSQ 1” DES-651.01 D-7 UMA 01 6771209 CURVA, 90GR, PVC RIG, ELET 1” DES-651.03 D-11 UMA 02 6771200 LUVA ELETRODUTO PVC RIG ROSQ 1” DES-651.02 D-25 UMA 02 0090009 UNIÃO, MACHO-FÊMEA, AÇO ZINC, ELET 1” F-2 UMA 16 6770632 ARRUELA QUAD, AÇO ZINC, 50x3x18mm DES-410.03 F-6 UM 16 6770646 ARRUELA RED, AÇO ZINC, 36x3x18mm DES-410.01 F-7 UM 16 6770638 ARRUELA PRESS, AÇO ZINC, 24x4x17,5mm DES-410.02 F-24 UM 17 6770307 PARAFUSO, CAB QUAD, AÇO ZINC, M16x300 DES-410.10 O-12 UM 01 6770949 CONECTOR, ATERR, CU, 16-70mm 2 DES-710.25 O-13 UM 03 6770898 CONECTOR FEND, CU, 35-70mm 2 TR, 16-70mm 2 DR DES-710.35 O-30 UM 06 6770857 CONECTOR TERM, RETO, 4F, AL/CU, 6-750MCM DES-710.18 T-7 UM 02 4543476 PÓ, SOLDA, CARTUCHO 90 g DES-820.40 RELAÇÃO DE SECIONADORES TRIPOLAR – 72,5 kV MONTAGEM HORIZ. BAIXA, ABERTURA LATERAL, S/LT REF UNID QUANT E-SE-004 (TIPOS) CÓDIGO ESTOQUE DESCRIÇÃO DO EQUIPAMENTO C2 6771462 SEC, TRIP, 72,5 kV, C2B, 1250 A, HLMASLT E-SE-004 (*) E-5 UMA 01 C8 6771468 SEC, TRIP, 72,5 kV, C8B, 2000 A, HLMASLT E-SE-004 (*) (*) LEGENDA: C2B – Chave Tipo C2 Baixa C8B – Chave Tipo C8 Baixa HLMASLT – Montagem Horizontal Baixa, Abertura Lateral, Sem Lâmina de Terra
  • 154.
    Desenhista Substitui Des. Nº Verificado Código/ Página Escala Desenho Nº Folha: Aprovado COELCE Companhia Energética do Ceará 52/162 DISJUNTOR TRIPOLAR 15 kV COM TC´s DETALHES DE INSTALAÇÃO E MONTAGEM PS-052 S/E 052.13.0 2/2 PEDRO PAULO KEYLA 20 02 03 20 02 03 RELAÇÃO DE MATERIAL REF UNID QUANTIDADE CÓDIGO ESTOQUE DESCRIÇÃO DO MATERIAL C-3 KG 05 6771504 CABO CU NU 70mm² 19 FIOS MD DES-210.01 D-2 UM 03 6771192 ELETRODUTO PVC RIG ROSQ 1.1/2” 3m DES-651.01 D-6 UMA 03 6771210 CURVA, 90GR, PVC RIG, ELET 1.1/2” DES-651.03 D-10 UMA 06 6771201 LUVA ELETRODUTO PVC RIG ROSQ 1.1/2” DES-651.02 D-18 UMA 03 6771385 BUCHA, BAQ, SEXT, FIX ELET 1.1/2” DES-641.25 D-21 UMA 03 6770653 ARRUELA SEXT FE NODULAR ELET 1.1/2” DES-641.20 O-12 UM 04 6770949 CONECTOR, ATERR, CU, 16-70mm 2 DES-710.25 O-30 UM 06 6770857 CONECTOR TERM, RETO, 4F, AL/CU, 6-750 MCM DES-710.18 (NOTA 1) O-31 UM 06 4543915 CONECTOR TERM, RETO, 2F, AL/CU, 6-750MCM DES-710.17 (NOTA 1) T-7 UM 02 4543476 PÓ, SOLDA, CARTUCHO 90 g DES-820.40 RELAÇÃO DOS DISJUNTORES TRIPOLAR DE 15 kV COM TC´s REF UNID QUANT E-SE-003 (TIPOS) CÓDIGO ESTOQUE DESCRIÇÃO DO EQUIPAMENTO 6771383 DISJUNTOR C1 SF6/VAC 15 kV 630 A 16 kA S/R E-SE-003 E-9 6773971 DISJUNTOR C1 SF6/VAC 15 kV 630 A 16 kA C/R E-SE-003 6771383 DISJUNTOR C1 SF6/VAC 15 kV 630 A 16 kA S/R B. CAP E-SE-003 E-22 C1 4544126 DISJUNTOR C1 SF6/VAC 15 kV 630 A 16 kA C/R B. CAP E-SE-003 6771339 DISJUNTOR C2 SF6/VAC 15 kV 1250 A 16 kA S/R E-SE-003 E-28 C2 6773977 DISJUNTOR C2 SF6/VAC 15 kV 1250 A 16 kA C/R E-SE-003 6771342 DISJUNTOR C3 SF6/VAC 15 kV 2000 A 16 kA S/R E-SE-003 E-37 C3 6773978 DISJUNTOR C3 SF6/VAC 15 kV 2000 A 16 kA C/R E-SE-003 E-42 UM 01 C4 4544078 DISJUNTOR C4 SF6/VAC 15 kV 2000 A 25 kA E-SE-003 RELAÇÃO DE TRANSFORMADORES DE CORRENTE 15 kV DISJUNTORES (TIPOS) TC’s (TIPOS) CÓDIGO (TC’s) ESTOQUE DESCRIÇÃO DO EQUIPAMENTO C1 (630 A, 16 kA) C3 6771685 TC EXTERNO C3 15 KV 150/400x300/800-5-5A E-SE-007 C2 (1250 A, 16 kA) C1 6771647 TC EXTERNO C1 15 KV 200/400/600x400/800/1200-5-5A E-SE-007 C3 (2000 A, 16 kA) C4 (2000 A, 25 kA) C4 6771687 TC EXTERNO C4 15 KV 600/800/1000x1200/1600/2000-5-5A E-SE-007 Notas: 1- O conectores O-31 serão utilizados nos disjuntores tipo C1, os O-30 nos disjuntores tipo C2, C3 e C4.
  • 156.
    Desenhista Substitui Des. Nº Verificado Código/ Página Escala Desenho Nº Folha: Aprovado COELCE Companhia Energética do Ceará 54/162 RELIGADOR TRIFÁSICO 15 kV DETALHES DE INSTALAÇÃO E MONTAGEM PS-052 S/E 052.14.0 2/2 PEDRO PAULO KEYLA 20 02 03 20 02 03 RELAÇÃO DE MATERIAL REF UNID QUANTIDADE CÓDIGO ESTOQUE DESCRIÇÃO DO MATERIAL C-3 KG 0,4 6771504 CABO CU NU 70mm² 19 FIOS MD DES-210.01 D-2 UM 02 6771192 ELETRODUTO PVC RIG ROSQ 1.1/2” 3m DES-651.01 D-6 UMA 03 6771210 CURVA, 90GR, PVC RIG, ELET 1.1/2” DES-651.03 D-10 UMA 06 6771201 LUVA ELETRODUTO PVC RIG ROSQ 1.1/2” DES-651.02 D-18 UMA 03 6771385 BUCHA, BAQ, SEXT, FIX ELET 1.1/2” DES-641.25 D-21 UMA 03 6770653 ARRUELA SEXT FE NODULAR ELET 1.1/2” DES-641.20 T-7 UM 01 4543476 PÓ, SOLDA, CARTUCHO 90 g DES-820.40 RELAÇÃO DE RELIGADORES TRIFÁSICOS 15 kV REF UNID QUANT E-MT-004 (TIPOS) CÓDIGO ESTOQUE DESCRIÇÃO DO EQUIPAMENTO 6771031 RELIGADOR, 15 kV, RCO1, 560 A, 16 kA, S/R E-MT-004 E-21 UM 01 RCO1 6771350 RELIGADOR, 15 kV, RCO1, 560 A, 16 kA, C/R E-MT-004
  • 158.
    ! #$% ' ( ) % * +,-./
  • 159.
    Desenhista Substitui Des. Nº Verificado Código/ Página Escala Desenho Nº Folha: Aprovado COELCE Companhia Energética do Ceará 65/162 PÁRA-RAIOS TIPO ESTAÇÃO 15 kV DETALHES DE INSTALAÇÃO E MONTAGEM PS-052 S/E 052.17.0 3/3 PEDRO PAULO KEYLA 20 02 03 20 02 03 RELAÇÃO DE MATERIAL REF UNID QUANTIDADE CÓDIGO ESTOQUE DESCRIÇÃO DO MATERIAL C-3 KG - 6771504 CABO CU NU 70mm² 19 FIOS MD DES-210.01 C-16 M 25 6771561 CABO, CU, ISOL, XLPE, 0,6/1kV, 70mm² DES-204.03 D-36 UMA 19 6771896 ABRAÇADEIRA UNHA 20(1/2”) D7 DES-655.20 F-2 UMA 06 6770632 ARRUELA QUAD, AÇO ZINC, 50x3x18mm DES-410.03 F-5 UMA 06 6770645 ARRUELA RED, AÇO ZINC, 28x3x14mm DES-410.01 F-7 UM 06 6770638 ARRUELA PRESS, AÇO ZINC, 24x4x17,5mm DES-410.02 F-23 UM 06 6770306 PARAFUSO, CAB QUAD, AÇO ZINC, M16x250 DES-410.10 F-34 UM 19 6770594 PARAFUSO, AUTO-ATAR, CAB CIL, 4,8x50 DES-410.32 N-1 UMA 19 6770615 BUCHA NYLON, S-8, P/PARAF 4,8x50 mm T-7 UM 03 4543476 PÓ, SOLDA, CARTUCHO 90 g DES-820.40 RELAÇÃO DE PÁRA-RAIOS TIPO ESTAÇÃO – 15 kV REF UNID QUANT ET-155 (TIPO) CÓDIGO ESTOQUE DESCRIÇÃO DO EQUIPAMENTO E-19 UM 03 C2 6771010 PÁRA-RAIOS, ESTAÇÃO, 15 kV, C2, 10 kA ET-155
  • 161.
    Desenhista Substitui Des. Nº Verificado Código/ Página Escala Desenho Nº Folha: Aprovado COELCE Companhia Energética do Ceará 67/162 PÁRA-RAIOS TIPO DISTRIBUIÇÃO 15 kV DETALHES DE INSTALAÇÃO E MONTAGEM PS-052 S/E 052.18.0 2/2 PEDRO PAULO KEYLA 20 02 03 20 02 03 RELAÇÃO DE MATERIAL REF UNID QUANTIDADE CÓDIGO ESTOQUE DESCRIÇÃO DO MATERIAL C-3 KG 0,4 6771504 CABO CU NU 70mm² 19 FIOS MD DES-210.01 O-13 UM 03 6770898 CONECTOR FEND, CU, 35-70mm 2 TR, 16-70mm 2 DR DES-710.35 T-7 UM 02 4543476 PÓ, SOLDA, CARTUCHO 90 g DES-820.40 RELAÇÃO DE PÁRA-RAIOS TIPO DISTRIBUIÇÃO – 15 kV REF UNID QUANT ET-155 (TIPO) CÓDIGO ESTOQUE DESCRIÇÃO DO EQUIPAMENTO E-31 UM 03 C3 6771341 PÁRA-RAIOS; DIST; 15 kV; C3; 10 kA; 110 kV ET-155
  • 162.
    ! #$ % ' ( ) % *
  • 163.
    ! #$ % ' ( ) % *
  • 164.
    Desenhista Substitui Des. Nº Verificado Código/ Página Escala Desenho Nº Folha: Aprovado COELCE Companhia Energética do Ceará 70/162 TRANSFORMADOR PARA SERVIÇOS AUXILIARES 75 kVA DETALHES DE INSTALAÇÃO E MONTAGEM PS-052 S/E 052.19.0 3/3 PEDRO PAULO KEYLA 20 02 03 20 02 03 RELAÇÃO DE MATERIAL REF UNID QUANTIDADE CÓDIGO ESTOQUE DESCRIÇÃO DO MATERIAL C-3 KG 2,5 6771504 CABO CU NU 70mm² 19 FIOS MD DES-210.01 D-1 UM 02 6771193 ELETRODUTO PVC RIG ROSQ 2” 3m DES-651.01 D-5 UMA 03 6771211 CURVA, 90GR, PVC RIG, ELET 2” DES-651.03 D-9 UMA 06 6771202 LUVA ELETRODUTO PVC RIG ROSQ 2” DES-651.02 D-19 UMA 02 6771386 BUCHA , BAQ, SEXT, FIX ELET 2” DES-641.25 D-22 UMA 02 6770654 ARRUELA SEXT FE NODULAR ELET 2” DES-641.20 D-38 UM 01 0090002 CABEÇOTE, BAQ, ELET/CX MED 2” DES-435.10 D-39 UMA 01 0090012 RÉGUA , BORNES, TERM, BAQ, 5 POLOS 600V/150 A D-43 UMA 01 6775622 CAIXA LIG, RET, EQUIP TEMPO, LIGA AL , ITEM 2 DES-641.05 F-2 UMA 02 6770632 ARRUELA QUAD, AÇO ZINC, 50x3x18mm DES-410.03 F-5 UMA 08 6770645 ARRUELA RED, AÇO ZINC, 28x3x14mm DES-410.01 F-6 UMA 02 6770646 ARRUELA RED, AÇO ZINC, 36x3x18mm DES-410.01 F-7 UMA 02 6770638 ARRUELA PRESS, AÇO ZINC, 24x4x17,5mm DES-410.02 F-10 UMA 02 6771837 CANTONEIRA, AÇO ZINC, U-50x38x5x310x430mm DES-435.31 F-12 UMA 02 6771829 CANTONEIRA, AÇO ZINC, L, 40x5x250mm DES-435.21 F-22 UM 02 6770305 PARAFUSO, CAB QUAD, AÇO ZINC, M16x200 DES-410.10 F-29 UM 04 6770350 PARAFUSO, CAB QUAD, AÇO ZINC, M12x250 DES-410.11 F-34 UM 03 6770594 PARAFUSO, AUTO-ATAR, CAB CIL, 4,8x50 DES-410.32 F-47 UM 04 6770560 PARAFUSO, CAB QUAD, AÇO ZINC, M10x50 DES-410.12 F-56 UMA 08 6770644 ARRUELA RED, AÇO ZINC, 22x2x12mm DES-410.01 L-1 UMA 03 6771903 ABRAÇADEIRA, UNHA, 60 (2”), D10,5 DES-655.20 N-1 UMA 03 6770615 BUCHA, NYLON, S-8, P/PARAF 4,8x50 mm N-4 UM 01 6771172 DISJUNTOR, BT, 3P, 150 A, 380 V /10 kA C/FIX O-12 UM 01 6770949 CONECTOR, ATERR, CU, 16-70mm 2 DES-710.25 O-13 UM 01 6770898 CONECTOR FEND, CU, 35-70mm 2 TR, 16-70mm 2 DR DES-710.35 T-3 UMA 01 6771912 CHAPA, CURVA, ATERR, CAZ, D=14 mm DES-800.20 T-7 UM 01 4543476 PÓ, SOLDA, CARTUCHO 90 g DES-820.40 RELAÇÃO DE TRANSFORMADORES PARA SERVIÇOS AUXILIARES REF UNID QUANT ET-101 (TIPO) CÓDIGO ESTOQUE DESCRIÇÃO DO EQUIPAMENTO E-20 UM 01 C 6771623 TRANSFORMADOR, 3F, 75 kVA, 14,4/380-220 V ET-101 (OBS*) OBS* : A RELAÇÃO DE TENSÃO COMPLETA DO TSA É 14,4/13,8/13,2 kV / 380-220 V.
  • 168.
    ! #$ % ' ( ) % *
  • 169.
    Desenhista Substitui Des. Nº Verificado Código/ Página Escala Desenho Nº Folha: Aprovado COELCE Companhia Energética do Ceará 75/162 SECIONADOR TRIPOLAR 15 kV MONTAGEM HORIZ. ALTA, ABERTURA LATERAL, S/LT DETALHES DE INSTALAÇÃO E MONTAGEM PS-052 S/E 052.20.0 5/5 PEDRO PAULO KEYLA 20 02 03 20 02 03 RELAÇÃO DE MATERIAL REF UNID QUANTIDADE CÓDIGO ESTOQUE DESCRIÇÃO DO MATERIAL C-3 KG 2,4 6771504 CABO CU NU 70mm² 19 FIOS MD DES-210.01 D-3 UM 01 6771191 ELETRODUTO PVC RIG ROSQ 1” DES-651.01 D-7 UMA 01 6771209 CURVA, 90GR, PVC RIG, ELET 1” DES-651.03 D-11 UMA 02 6771200 LUVA ELETRODUTO PVC RIG ROSQ 1” DES-651.02 D-25 UMA 01 0090009 UNIÃO, MACHO-FÊMEA, AÇO ZINC, ELET 1” F-2 UMA 12 6770632 ARRUELA QUAD, AÇO ZINC, 50x3x18mm DES-410.03 F-6 UM 12 6770646 ARRUELA RED, AÇO ZINC, 36x3x18mm DES-410.01 F-7 UM 12 6770638 ARRUELA PRESS, AÇO ZINC, 24x4x17,5mm DES-410.02 F-24 UM 12 6770307 PARAFUSO, CAB QUAD, AÇO ZINC, M16x300 DES-410.10 O-12 UM 01 6770949 CONECTOR, ATERR, CU, 16-70mm 2 DES-710.25 O-13 UM 04 6770898 CONECTOR FEND, CU, 35-70mm 2 TR, 16-70mm 2 DR DES-710.35 O-30 UM 06 6770857 CONECTOR TERM, RETO, 4F, AL/CU, 6-750MCM DES-710.18 (NOTA 1) O-31 UM 06 4543915 CONECTOR TERM, RETO, 2F, AL/CU 6-750MCM DES-710.17 (NOTA 1) T-7 UM 03 4543476 PÓ, SOLDA, CARTUCHO 90 g DES-820.40 RELAÇÃO DE SECIONADORES TRIPOLAR – 15 kV MONTAGEM HORIZ. ALTA, ABERTURA LATERAL, S/LT REF UNID QUANT E-SE-006 (TIPOS) CÓDIGO ESTOQUE DESCRIÇÃO DO EQUIPAMENTO C1 6771473 SEC, TRIP, 15 kV, C1A, 630 A, HLMASLT E-SE-006 (*) E-11 C10 6771002 SEC, TRIP, 15 kV, C10A, 630 A, HLMOSLT E-SE-006 (*) C2 6771474 SEC, TRIP, 15 kV, C2A, 1250 A, HLMASLT E-SE-006 (*) E-27 C3 6771482 SEC, TRIP, 15 kV, C3A, 1250 A, HLMOSLT E-SE-006 (*) C4 6771475 SEC, TRIP, 15 kV, C4A, 2000 A, HLMASLT E-SE-006 (*) E-29 UMA 01 C5 6771483 SEC, TRIP, 15 kV, C5A, 2000 A, HLMOSLT E-SE-006 (*) Notas: 1- O conectores O-31 serão utilizados nos secionadores tipo C1 e C10, os O-30 nos secionadores tipo C2, C3, C4 e C5. (*) LEGENDA: C1A – Chave Tipo C1 Alta C2A – Chave Tipo C2 Alta C3A – Chave Tipo C3 Alta C4A – Chave Tipo C4 Alta C5A – Chave Tipo C5 Alta C10A – Chave Tipo C10 Alta HLMASLT – Montagem Horizontal Alta, Abertura Lateral, Manual, Sem Lâmina de Terra HLMOSLT – Montagem Horizontal Alta, Abertura Lateral, Motorizada, Sem Lâmina de Terra
  • 173.
    Desenhista Substitui Des. Nº Verificado Código/ Página Escala Desenho Nº Folha: Aprovado COELCE Companhia Energética do Ceará 88/162 SECIONADOR UNIPOLAR 15 kV MONTAGEM VERTICAL DUPLA, ABERTURA VERTICAL DETALHES DE INSTALAÇÃO E MONTAGEM PS-052 S/E 052.23.0 4/4 PEDRO PAULO KEYLA 20 02 03 20 02 03 RELAÇÃO DE MATERIAL REF UNID QUANTIDADE CÓDIGO ESTOQUE DESCRIÇÃO DO MATERIAL C-3 KG 0,6 6771504 CABO CU NU 70mm² 19 FIOS MD DES-210.01 F-2 UMA 24 6770632 ARRUELA QUAD, AÇO ZINC, 50x3x18mm DES-410.03 F-6 UM 24 6770646 ARRUELA RED, AÇO ZINC, 36x3x18mm DES-410.01 F-7 UM 48 6770638 ARRUELA PRESS, AÇO ZINC, 24x4x17,5mm DES-410.02 F-41 UM 12 6770597 PARAFUSO, ROSCA DUP, AÇO, M16x400 DES-410.28 O-13 UM 03 6770898 CONECTOR FEND, CU, 35-70mm 2 TR, 16-70mm 2 DR DES-710.35 O-30 UM 06 6770857 CONECTOR TERM, RETO, 4F, AL/CU, 6-750MCM DES-710.18 (NOTA 1) O-31 UM 06 4543915 CONECTOR TERM, RETO, 2F, AL/CU, 6-750MCM DES-710.17 (NOTA 1) T-7 UM 02 4543476 PÓ, SOLDA, CARTUCHO 90 g DES-820.40 RELAÇÃO DE SECIONADORES UNIPOLAR – 15 kV MONTAGEM VERTICAL DUPLA, ABERTURA VERTICAL REF UNID QUANT E-SE-006 (TIPOS) CÓDIGO ESTOQUE DESCRIÇÃO DO EQUIPAMENTO E-12 UMA 03 C8 6771479 SEC, UNIP; 15 kV; C8V; 1250 A; VVMA E-SE-006 (*) E-13 UMA 03 C7 6771478 SEC, UNIP; 15 kV; C7V; 630 A; VVMA E-SE-006 (*) E-30 UMA 03 C9 6771480 SEC, UNIP; 15 kV; C9V; 2000 A; VVMA E-SE-006 (*) Notas: 1- O conectores O-31 serão utilizados nos secionadores tipo C7, os O-30 nos secionadores tipo C8 e C9. (*) LEGENDA: C7V – Chave Tipo C7 Montagem Vertical C8V – Chave Tipo C8 Montagem Vertical C9V – Chave Tipo C9 Montagem Vertical VVMA – Montagem Vertical, Abertura Vertical, Manual
  • 178.
    Desenhista Substitui Des. Nº Verificado Código/ Página Escala Desenho Nº Folha: Aprovado COELCE Companhia Energética do Ceará 96/162 SECIONADOR FUSÍVEL 15 kV DETALHES DE INSTALAÇÃO E MONTAGEM PS-052 S/E 052.25.0 4/4 PEDRO PAULO KEYLA 20 02 03 20 02 03 RELAÇÃO DE MATERIAL REF UNID QUANTIDADE CÓDIGO ESTOQUE DESCRIÇÃO DO MATERIAL C-3 KG 0,6 6771504 CABO CU NU 70mm² 19 FIOS MD DES-210.01 F-2 UMA 12 6770632 ARRUELA QUAD, AÇO ZINC, 50x3x18mm DES-410.03 F-6 UM 12 6770646 ARRUELA RED, AÇO ZINC, 36x3x18mm DES-410.01 F-7 UM 12 6770638 ARRUELA PRESS, AÇO ZINC, 24x4x17,5mm DES-410.02 F-23 UM 12 6770306 PARAFUSO, CAB QUAD, AÇO ZINC, M16x250 DES-410.10 O-13 UM 03 6770898 CONECTOR FEND, CU, 35-70mm 2 TR, 16-70mm 2 DR DES-710.35 O-31 UM 06 4543915 CONECTOR TERM, RETO, 2F, AL/CU 6-750MCM DES-710.17 T-7 UM 02 4543476 PÓ, SOLDA, CARTUCHO 90 g DES-820.40 RELAÇÃO DE SECIONADOR FUSÍVEL – 15 kV MONTAGEM VERTICAL, ABERTURA VERTICAL REF UNID QUANT DES-135.02 (TIPO) CÓDIGO ESTOQUE DESCRIÇÃO DO EQUIPAMENTO E-15 UMA 03 C 6771334 CHAVE, FUS; C; 24 kV; 400 A; 6,3 kA; VIGA DES-135.02
  • 179.
    ! #$ % ' ( ) % *
  • 180.
    ! #$ % ' ( ) % *
  • 181.
    Desenhista Substitui Des. Nº Verificado Código/ Página Escala Desenho Nº Folha: Aprovado COELCE Companhia Energética do Ceará 103/162 CAIXA DE LIGAÇÃO PARA PONTO DE CONEXÃO TRIFÁSICO DETALHES DE INSTALAÇÃO E MONTAGEM PS-052 S/E 052.27.0 3/3 PEDRO PAULO KEYLA 20 02 03 20 02 03 RELAÇÃO DE MATERIAL REF UNID QUANTIDADE CÓDIGO ESTOQUE DESCRIÇÃO DO MATERIAL C-3 KG - 6771504 CABO CU NU 70mm² 19 FIOS MD DES-210.01 D-1 UM 01 6771193 ELETRODUTO PVC RIG ROSQ 2” 3m DES-651.01 D-5 UMA 01 6771211 CURVA, 90GR, PVC RIG, ELET 2” DES-651.03 D-9 UMA 02 6771202 LUVA ELETRODUTO PVC RIG ROSQ 2” DES-651.02 D-19 UMA 01 6771386 BUCHA , BAQ, SEXT, FIX ELET 2” DES-641.25 D-22 UMA 01 6770654 ARRUELA SEXT FE NODULAR ELET 2” DES-641.20 D-39 UMA 01 0090012 RÉGUA , BORNES, TERM, BAQ, 5 POLOS 600V/150 A D-43 UMA 01 6775622 CAIXA LIG, RET, EQUIP TEMPO, LIGA AL , ITEM 2 DES-641.05 F-5 UMA 08 6770645 ARRUELA RED, AÇO ZINC, 28x3x14mm DES-410.01 F-10 UMA 02 6771837 CANTONEIRA, AÇO ZINC, U-50x38x5x310x430mm DES-435.31 F-12 UMA 02 6771829 CANTONEIRA, AÇO ZINC, L, 40x5x250mm DES-435.21 F-29 UM 04 6770350 PARAFUSO, CAB QUAD, AÇO ZINC, M12x250 DES-410.11 F-47 UM 04 6770560 PARAFUSO, CAB QUAD, AÇO ZINC, M10x50 DES-410.12 F-56 UMA 08 6770644 ARRUELA RED, AÇO ZINC, 22x2x12mm DES-410.01 N-5 UM 01 6771169 DISJUNTOR, BT, 3P, 100 A, 380 V /5 kA C/FIX O-12 UM 01 6770949 CONECTOR, ATERR, CU, 16-70mm 2 DES-710.25 O-13 UM 01 6770898 CONECTOR FEND, CU, 35-70mm 2 TR, 16-70mm 2 DR DES-710.35 T-3 UMA 01 6771912 CHAPA, CURVA, ATERR, CAZ, D=14 mm DES-800.20 T-7 UM 01 4543476 PÓ, SOLDA, CARTUCHO 90 g DES-820.40
  • 182.
    ! #$ % ' ( ) % *
  • 183.
    ! #$ % ' ( ) % *
  • 184.
    Desenhista Substitui Des. Nº Verificado Código/ Página Escala Desenho Nº Folha: Aprovado COELCE Companhia Energética do Ceará 112/162 CONJUNTO DE DUAS LUMINÁRIAS A 90º MONTADAS EM POSTE DE CONCRETO 9.000 mm DETALHES DE INSTALAÇÃO E MONTAGEM PS-052 S/E 052.30.0 3/3 PEDRO PAULO KEYLA 20 02 03 20 02 03 RELAÇÃO DE MATERIAL REF UNID QUANTIDADE CÓDIGO ETOQUE DESCRIÇÃO DO MATERIAL C-3 KG 06 6771504 CABO CU NU 70mm² 19 FIOS MD DES-210.01 D-3 UM 03 6771191 ELETRODUTO PVC RIG ROSQ 1” 3 m DES-651.01 D-7 UMA 01 6771209 CURVA, 90GR, PVC RÍG, ELET 1” DES-651.03 D-11 UMA 05 6771200 LUVA ELETRODUTO PVC RÍG ROSQ 1” DES-651.02 D-17 UMA 02 6771384 BUCHA, BAQ, SEXT, FIX ELET 1” DES-641.25 D-37 UM 01 0090001 CABEÇOTE, BAQ, ELET/CX MED, 1” DES-435.10 F-2 UMA 01 6770632 ARRUELA QUAD, AÇO ZINC, 50x3x18mm DES-410.03 F-6 UMA 07 6770646 ARRUELA RED, AÇO ZINC, 36x3x18mm DES-410.01 F-22 UM 02 6770305 PARAFUSO, CAB QUAD, AÇO ZINC, M16x200 DES-410.10 (NOTA 1) F-23 UM 02 6770306 PARAFUSO, CAB QUAD, AÇO ZINC, M16x250 DES-410.10 (NOTA 1) F-34 UM 04 6770594 PARAFUSO, AUTO-ATAR, CAB CIL, 4,8x50 DES-410.32 L-2 UMA 04 6771901 ABRAÇADEIRA, UNHA, 32 (1”) D7 DES-655.20 L-4 UM 02 6771027 BRAÇO, LUMI, 250/400 W, AÇO ZINC 2500 mm DES-608.02 L-7 UMA 02 6771773 LÂMPADA, SÓDIO, 150 W, BASE E-40 DES-606.03 L-8 UMA 02 6771731 LUM, FECH, LÂMP HG/NA, 150/400 W DES-600.03 L-11 UM 02 6771762 REATOR, AFP, NA, 150 W, 220 V, C/ IG, EXT DES-601.03 L-16 UMA 01 6771023 BASE, RELÉ FOTOELÉTRICO DES-604.02 L-17 UM 01 6771021 RELÉ FOTOELÉTRICO, NF, 220 V, 1000 W, USO EXTERNO DES-604.01 N-1 UMA 04 6770615 BUCHA, NYLON, S-8, P/PARAF 4,8x50 mm O-12 UM 04 6770949 CONECTOR, ATERR, CU, 16-70 mm 2 DES-710.25 O-13 UM 02 6770898 CONECTOR FEND, CU, 35-70mm 2 TR, 16-70mm 2 DR DES-710.35 P-24 UM 01 6770686 POSTE, CONC, DUPLO T, 9 m, 300 daN, TIPO B, ET-300 T-7 UM 01 4543476 PÓ, SOLDA, CARTUCHO 90 g DES-820.40 NOTA: 1- O PARAFUSO F-22 É UTILIZADO NO LADO DE MENOR ESFORÇO, E O PARAFUSO F-23 NO LADO DE MAIOR ESFORÇO.
  • 185.
    ! #$ % ' ( ) % *
  • 186.
    ! #$ % ' ( ) % *
  • 187.
    Desenhista Substitui Des. Nº Verificado Código/ Página Escala Desenho Nº Folha: Aprovado COELCE Companhia Energética do Ceará 118/162 CONJUNTO DE TRÊS LUMINÁRIAS A 90º MONTADAS EM POSTE DE CONCRETO 9.000 mm DETALHES DE INSTALAÇÃO E MONTAGEM PS-052 S/E 052.32.0 3/3 PEDRO PAULO KEYLA 20 02 03 20 02 03 RELAÇÃO DE MATERIAL REF UNID QUANTIDADE CÓDIGO ETOQUE DESCRIÇÃO DO MATERIAL C-3 KG 06 6771504 CABO CU NU 70mm² 19 FIOS MD DES-210.01 D-3 UM 03 6771191 ELETRODUTO PVC RÍG ROSQ 1” 3 m DES-651.01 D-7 UMA 01 6771209 CURVA, 90GR, PVC RÍG, ELET 1” DES-651.03 D-11 UMA 05 6771200 LUVA ELETRODUTO PVC RÍG ROSQ 1” DES-651.02 D-17 UMA 02 6771384 BUCHA, BAQ, SEXT, FIX ELET 1” DES-641.25 D-37 UM 01 0090001 CABEÇOTE, BAQ, ELET/CX MED, 1” DES-435.10 F-6 UMA 08 6770646 ARRUELA RED, AÇO ZINC, 36x3x18mm DES-410.01 F-22 UM 02 6770305 PARAFUSO, CAB QUAD, AÇO ZINC, M16x200 DES-410.10 (NOTA 1) F-23 UM 02 6770306 PARAFUSO, CAB QUAD, AÇO ZINC, M16x250 DES-410.10 (NOTA 1) F-34 UM 04 6770594 PARAFUSO, AUTO-ATAR, CAB CIL, 4,8x50 DES-410.32 L-2 UMA 04 6771901 ABRAÇADEIRA, UNHA, 32 (1”) D7 DES-655.20 L-4 UM 03 6771027 BRAÇO, LUMI, 250/400 W, AÇO ZINC 2500 mm DES-608.02 L-7 UMA 03 6771773 LÂMPADA, SÓDIO, 150 W, BASE E-40 DES-606.03 L-8 UMA 03 6771731 LUM, FECH, LÂMP HG/NA, 150/400 W DES-600.03 L-11 UM 03 6771762 REATOR, AFP, NA, 150 W, 220 V, C/ IG, EXT DES-601.03 L-16 UMA 01 6771023 BASE, RELÉ FOTOELÉTRICO DES-604.02 L-17 UM 01 6771021 RELÉ FOTOELÉTRICO, NF, 220 V, 1000 W, USO EXTERNO DES-604.01 N-1 UMA 04 6770615 BUCHA, NYLON, S-8, P/PARAF 4,8x50 mm O-12 UM 06 6770949 CONECTOR, ATERR, CU, 16-70 mm 2 DES-710.25 O-13 UM 02 6770898 CONECTOR FEND, CU, 35-70mm 2 TR, 16-70mm 2 DR DES-710.35 P-24 UM 01 6770686 POSTE, CONC, DUPLO T, 9 m, 300 daN, TIPO B, ET-300 T-7 UM 01 4543476 PÓ, SOLDA, CARTUCHO 90 g DES-820.40 T-10 UMA 01 6771856 CHAPA, FIXAÇÃO, CAZ, 450x60x12 mm DES-435.50 NOTA: 1- O PARAFUSO F-22 É UTILIZADO NO LADO DE MENOR ESFORÇO, E O PARAFUSO F-23 NO LADO DE MAIOR ESFORÇO.
  • 188.
    ! #$ % ' ( ) % *
  • 189.
    Desenhista Substitui Des. Nº Verificado Código/ Página Escala Desenho Nº Folha: Aprovado COELCE Companhia Energética do Ceará 120/162 LUMINÁRIA DE EMERGÊNCIA MONTADA EM POSTE DE CONCRETO DETALHES DE INSTALAÇÃO E MONTAGEM PS-052 S/E 052.33.0 2/2 PEDRO PAULO KEYLA 20 02 03 20 02 03 RELAÇÃO DE MATERIAL REF UNID QUANTIDADE CÓDIGO ETOQUE DESCRIÇÃO DO MATERIAL C-3 KG - 6771504 CABO CU NU 70mm² 19 FIOS MD DES-210.01 D-4 UM 02 6771190 ELETRODUTO PVC RÍG ROSQ 3/4” 3 m DES-651.01 D-8 UMA 01 6771208 CURVA, 90GR, PVC RÍG, ELET 3/4” DES-651-03 D-12 UMA 03 6771199 LUVA ELETRODUTO PVC RÍG ROSQ 3/4” DES-651.02 F-34 UM 04 6770594 PARAFUSO, AUTO-ATAR, CAB CIL, 4,8x50 DES-410.32 L-3 UMA 02 6771897 ABRAÇADEIRA, TIPO UNHA, 25 (3/4”), D7 DES-655.20 L-9 UMA 01 4544265 LÂMPADA, INCAND, 100 W, 130 VCC, PADRÃO, E-27 L-10 UMA 01 6771730 LUM, FECH, AL, LÂMP INCAND, 100 W, 130 V, Y-16 L-18 UM 03 0090016 BUJÃO, SELADOR, PVC, ROSCA 3/4“ N-1 UMA 04 6770615 BUCHA, NYLON, S-8, P/PARAF 4,8x50 mm
  • 190.
    ! #$ % ' ( ) % *
  • 191.
    Desenhista Substitui Des. Nº Verificado Código/ Página Escala Desenho Nº Folha: Aprovado COELCE Companhia Energética do Ceará 122/162 TOMADAS EXTERNAS MONOFÁSICAS E TRIFÁSICAS DETALHES DE INSTALAÇÃO E MONTAGEM PS-052 S/E 052.34.0 2/2 PEDRO PAULO KEYLA 20 02 03 20 02 03 RELAÇÃO DE MATERIAL REF UNID QUANTIDADE CÓDIGO ETOQUE DESCRIÇÃO DO MATERIAL C-3 KG - 6771504 CABO CU NU 70mm² 19 FIOS MD DES-210.01 D-3 UM 01 6771191 ELETRODUTO PVC RÍG ROSQ 1” 3 m DES-651.01 D-7 UMA 01 6771209 CURVA, 90GR, PVC RÍG, ELET 1” DES-651-03 D-11 UMA 02 6771200 LUVA ELETRODUTO PVC RÍG ROSQ 1” DES-651.02 F-34 UM 05 6770594 PARAFUSO, AUTO-ATAR, CAB CIL, 4,8x50 DES-410.32 L-2 UMA 01 6771901 ABRAÇADEIRA, TIPO UNHA, 32 (1”), D7 DES-655.20 L-13 UMA 01 4544024 TOMADA, BLIN, RED, 20 A, 500 V, 4 PÓLOS DES-621.20 L-14 UMA 01 4544022 TOMADA, BLIN, RED, 20 A, 500 V, 3 PÓLOS DES-621.20 L-19 UM 05 0090017 BUJÃO, SELADOR, PVC, ROSCA 1“ N-1 UMA 05 6770615 BUCHA, NYLON, S-8, P/PARAF 4,8x50 mm
  • 192.
    ! #$ % ' ( ) % *
  • 193.
    Desenhista Substitui Des. Nº Verificado Código/ Página Escala Desenho Nº Folha: Aprovado COELCE Companhia Energética do Ceará 126/162 CADEIA DE ANCORAGEM 69 kV COM ALÇA PREFORMADA DETALHES DE INSTALAÇÃO E MONTAGEM PS-052 S/E 052.36.0 2/2 PEDRO PAULO KEYLA 20 02 03 20 02 03 RELAÇÃO DE MATERIAL REF UNID QUANTIDADE CÓDIGO ETOQUE DESCRIÇÃO DO MATERIAL C-1 KG - 6771528 CABO, NU CAA, 266,8 MCM, 26/7 FIOS, PARTRIDGE DES-211.02 (NOTA 1) C-3 KG 0,5 6771504 CABO CU NU 70mm² 19 FIOS MD DES-210.01 C-12 KG - 4544172 CABO, NU CA, 556,5 MCM, 19 FIOS, DAHLIA DES-211.01 (NOTA 1) F-3 UMA 01 6770631 ARRUELA QUAD, AÇO ZINC, 50x5x22 mm DES-410.03 F-18 UM 01 6770332 PARAFUSO, CAB QUAD, AÇO ZINC, M20x350 DES-410.09 (NOTA 2) F-19 UM 01 6770333 PARAFUSO, CAB QUAD, AÇO ZINC, M20x400 DES-410.09 (NOTA 2) F-45 UMA 01 6770647 ARRUELA RED, AÇO ZINC, 44x5x22 mm DES-410.01 F-57 UMA 01 6770639 ARRUELA PRESS, AÇO ZINC, 28x4x22 mm DES-410.02 I-1 UM 06 6771068 ISOLADOR, DISCO, VIDRO, D=255, E=280, CB, DES-500.40 I-4 UM 01 6770972 GANCHO-BOLA, AÇO ZINC, 12.000 daN DES-510.19 I-5 UMA 01 6770968 CONCHILHA, CAZ, 8.000 daN DES-510.12 I-6 UM 01 6770619 OLHAL,PARAF M20, AÇO ZINC, 12.000 daN DES-410.05 O-12 UM 01 6770949 CONECTOR, ATERR, CU, 16-70 mm 2 DES-710.25 O-13 UM 01 6770898 CONECTOR FEND, CU, 35-70mm 2 TR, 16-70mm 2 DR DES-710.35 R-1 UMA 01 6770193 ALÇA PREF, DIST, CA 556,5 MCM, CAA 477 MCM DES-730.02 (NOTA 3) R-8 UMA 01 6770190 ALÇA PREF, DIST, CAA 266,8 MCM, 26/7 FIOS DES-730.02 (NOTA 3) T-1 UMA 01 6771910 CHAPA, CURVA, ATERR, CAZ, D=22 mm DES-800.20 NOTAS: 1- O CABO TIPO C-1 É UTILIZADO NAS SUBESTAÇÕES DE PEQUENO PORTE, E O CABO TIPO C-12 É UTILIZADO NAS SUBESTAÇÕES DE GRANDE PORTE; 2- O PARAFUSO F-18 É UTILIZADO NO LADO DE MENOR ESFORÇO DA VIGA, E O PARAFUSO F-19 NO LADO DE MAIOR ESFORÇO; 3- A ALÇA R-8 É UTILIZADA PARA AS SUBESTAÇÕES DE PEQUENO PORTE, E A ALÇA R-1 É UTILIZADA NAS SUBESTAÇÕES DE GRANDE PORTE; 4- O MATERIAL REFERE-SE A UMA ÚNICA CADEIA DE ISOLADORES.
  • 194.
    ! #$ % ' ( ) % *
  • 195.
    Desenhista Substitui Des. Nº Verificado Código/ Página Escala Desenho Nº Folha: Aprovado COELCE Companhia Energética do Ceará 130/162 CADEIA DE ANCORAGEM 13,8 kV PARA CABO DE 240 mm2 DETALHES DE INSTALAÇÃO E MONTAGEM PS-052 S/E 052.38.0 2/2 PEDRO PAULO KEYLA 20 02 03 20 02 03 RELAÇÃO DE MATERIAL REF UNID QUANTIDADE CÓDIGO ETOQUE DESCRIÇÃO DO MATERIAL C-3 KG 01 6771504 CABO CU NU 70mm² 19 FIOS MD DES-210.01 C-13 KG - 6771511 CABO CU NU 240mm² 37 FIOS MD DES-210.01 F-2 UMA 01 6770632 ARRUELA QUAD, AÇO ZINC, 50x3x18mm DES-410.03 F-6 UMA 01 6770646 ARRUELA RED, AÇO ZINC, 36x3x18 mm DES-410.01 F-7 UMA 01 6770638 ARRUELA, PRESS, CAZ, 24x4x17,5 mm DES-410.02 F-22 UM 01 6770305 PARAFUSO, CAB QUAD, AÇO ZINC, M16x200 DES-410.10 (NOTA 1) F-23 UM 01 6770306 PARAFUSO, CAB QUAD, AÇO ZINC, M16x250 DES-410.10 (NOTA 1) I-2 UM 03 6771067 ISOLADOR, DISCO, VIDRO, D=175, P=140, GO, DES-500.30 I-8 UM 01 6770618 OLHAL,PARAF M16, AÇO ZINC, 5.000 daN DES-410.05 I-10 UMA 02 6770977 MANILHA, AÇO ZINC, 16 mm, 12.000 daN DES-510.11 O-12 UM 01 6770949 CONECTOR, ATERR, CU, 16-70 mm 2 DES-710.25 O-13 UM 01 6770898 CONECTOR FEND, CU, 35-70mm 2 TR, 16-70mm 2 DR DES-710.35 R-6 UM 01 6770964 GRAMPO, ANC, TERM, CU, 120-240 mm 2 DES-710.30 T-2 UMA 01 6771911 CHAPA, CURVA, ATERR, CAZ, D=18 mm DES-800.20 NOTAS: 1- O PARAFUSO F-22 É UTILIZADO NO LADO DE MENOR ESFORÇO DA VIGA, E O PARAFUSO F-23 É UTILIZADO NO LADO DE MAIOR ESFORÇO; 2- O MATERIAL REFERE-SE A UMA ÚNICA CADEIA DE ISOLADORES.
  • 196.
    ! #$ % ' ( ) % *
  • 197.
    Desenhista Substitui Des. Nº Verificado Código/ Página Escala Desenho Nº Folha: Aprovado COELCE Companhia Energética do Ceará 142/162 COLUNA DE ISOLADORES 69 kV MONTAGEM VERTICAL OU HORIZONTAL PELA BASE DETALHES DE INSTALAÇÃO E MONTAGEM PS-052 S/E 052.44.0 2/2 PEDRO PAULO KEYLA 20 02 03 20 02 03 RELAÇÃO DE MATERIAL REF UNID QUANTIDADE CÓDIGO ETOQUE DESCRIÇÃO DO MATERIAL C-1 KG - 6771528 CABO, NU CAA, 266,8 MCM, 26/7 FIOS, PARTRIDGE DES-211.02 (NOTA 1) C-3 KG 0,5 6771504 CABO, CU NU 70mm² 19 FIOS MD DES-210.01 F-1 UMA 02 6770633 ARRUELA, QUAD, AÇO ZINC, 38x3x14mm DES-410.03 F-5 UMA 02 6770645 ARRUELA RED, AÇO ZINC, 28x3x14mm DES-410.01 F-30 UM 02 6770351 PARAFUSO, CAB QUAD, AÇO ZINC, M12x300 DES-410.11 F-32 UM 02 6770353 PARAFUSO, CAB QUAD, AÇO ZINC, M12x400 DES-410.11 F-49 UMA 02 6770623 PORCA QUAD, AÇO ZINC, M12x1,5 DES-410.04 F-55 UMA 01 6770637 ARRUELA, PRESS, CAZ, 18x3x13,5 mm DES-410.02 I-3 UM 02 6771071 ISOLADOR, PED, PORC, D=355, H=368 DES-503.05 O-5 UM 01 6771492 CONECTOR, SUP, CAA 266,8MCM, TUBO 3/8” - 1/2” DES-710.08 O-12 UM 01 6770949 CONECTOR, ATERR, CU, 16-70 mm 2 DES-710.25 O-13 UM 01 6770898 CONECTOR FEND, CU, 35-70mm 2 TR, 16-70mm 2 DR DES-710.35 T-3 UMA 01 6771912 CHAPA, CURVA, ATERR, CAZ, D=14 mm DES-800.20 NOTAS: 1- O CABO TIPO C-1 É USADO NAS SUBESTAÇÕES DE PEQUENO PORTE.
  • 198.
    ! #$ % ' ( ) % *
  • 199.
    Desenhista Substitui Des. Nº Verificado Código/ Página Escala Desenho Nº Folha: Aprovado COELCE Companhia Energética do Ceará 144/162 COLUNA DE ISOLADORES 69 kV MONTAGEM VERTICAL OU HORIZONTAL PELO TOPO DETALHES DE INSTALAÇÃO E MONTAGEM PS-052 S/E 052.45.0 2/2 PEDRO PAULO KEYLA 20 02 03 20 02 03 RELAÇÃO DE MATERIAL REF UNID QUANTIDADE CÓDIGO ETOQUE DESCRIÇÃO DO MATERIAL C-1 KG - 6771528 CABO, NU CAA, 266,8 MCM, 26/7 FIOS, PARTRIDGE DES-211.02 (NOTA 1) C-3 KG 0,5 6771504 CABO, CU NU 70mm² 19 FIOS MD DES-210.01 F-1 UMA 02 6770633 ARRUELA, QUAD, AÇO ZINC, 38x3x14mm DES-410.03 F-5 UMA 02 6770645 ARRUELA RED, AÇO ZINC, 28x3x14mm DES-410.01 F-40 UM 02 6770602 PARAFUSO, ROSCA DUP, CAZ, M12x400 DES-410.29 F-42 UM 02 6770601 PARAFUSO, ROSCA DUP, CAZ, M12x300 DES-410.29 F-55 UMA 01 6770637 ARRUELA, PRESS, CAZ, 18x3x13,5 mm DES-410.02 I-3 UM 02 6771071 ISOLADOR, PED, PORC, D=355, H=368 DES-503.05 O-5 UM 01 6771492 CONECTOR, SUP, CAA 266,8MCM, TUBO 3/8” - 1/2” DES-710.08 O-12 UM 01 6770949 CONECTOR, ATERR, CU, 16-70 mm 2 DES-710.25 O-13 UM 01 6770898 CONECTOR FEND, CU, 35-70mm 2 TR, 16-70mm 2 DR DES-710.35 T-3 UMA 01 6771912 CHAPA, CURVA, ATERR, CAZ, D=14 mm DES-800.20 NOTAS: 1- O CABO TIPO C-1 É USADO NAS SUBESTAÇÕES DE PEQUENO PORTE.
  • 200.
    ! #$ % ' ( ) % *
  • 201.
    Desenhista Substitui Des. Nº Verificado Código/ Página Escala Desenho Nº Folha: Aprovado COELCE Companhia Energética do Ceará 146/162 ISOLADOR DE PEDESTAL 15 kV MONTAGEM VERTICAL OU HORIZONTAL PELA BASE DETALHES DE INSTALAÇÃO E MONTAGEM PS-052 S/E 052.46.0 2/2 PEDRO PAULO KEYLA 20 02 03 20 02 03 RELAÇÃO DE MATERIAL REF UNID QUANTIDADE CÓDIGO ETOQUE DESCRIÇÃO DO MATERIAL C-3 KG 0,5 6771504 CABO, CU NU 70mm² 19 FIOS MD DES-210.01 C-13 KG - 6771511 CABO CU NU 240mm² 37 FIOS MD DES-210.01 F-1 UMA 02 6770633 ARRUELA, QUAD, AÇO ZINC, 38x3x14mm DES-410.03 F-5 UMA 02 6770645 ARRUELA RED, AÇO ZINC, 28x3x14mm DES-410.01 F-29 UM 02 6770350 PARAFUSO, CAB QUAD, AÇO ZINC, M12x250 DES-410.11 F-49 UMA 02 6770623 PORCA QUAD, AÇO ZINC, M12x1,5 DES-410.04 F-55 UMA 01 6770637 ARRUELA, PRESS, CAZ, 18x3x13,5 mm DES-410.02 I-12 UM 01 6771074 ISOLADOR, PED, PORC, D=205, H=254 DES-503.05 O-12 UM 01 6770949 CONECTOR, ATERR, CU, 16-70 mm 2 DES-710.25 O-13 UM 01 6770898 CONECTOR FEND, CU, 35-70mm 2 TR, 16-70mm 2 DR DES-710.35 O-22 UM 01 6770946 CONECTOR, SUPORTE, CU 120-500mm 2 DES-710.09 T-3 UMA 01 6771912 CHAPA, CURVA, ATERR, CAZ, D=14 mm DES-800.20
  • 203.
    Desenhista Substitui Des. Nº Verificado Código/ Página Escala Desenho Nº Folha: Aprovado COELCE Companhia Energética do Ceará 152/162 ATERRAMENTO DE PORTÃO DETALHES DE INSTALAÇÃO E MONTAGEM PS-052 S/E 052.49.0 2/2 PEDRO PAULO KEYLA 20 02 03 20 02 03 RELAÇÃO DE MATERIAL REF UNID QUANTIDADE CÓDIGO ETOQUE DESCRIÇÃO DO MATERIAL C-3 KG 01 6771504 CABO CU NU 70mm² 19 FIOS MD DES-210.01 D-40 UMA 02 0090015 ABRAÇADEIRA, GRAMPO, U, A2, 35x90 mm, COMPLETA O-12 UM 02 6770949 CONECTOR, ATERR, CU, 16-70 mm 2 DES-710.25 T-5 UMA 02 6771314 HASTE, ATERR, AÇO-CU, CIRC, 19x3000 mm DES-800.03 T-8 UM 02 4543477 PÓ, SOLDA, CARTUCHO 115 g DES-820.40 T-11 UMA 02 0090018 CORDOALHA FLEXÍVEL, COBRE ESTANHADO, 350 mm
  • 205.
    Desenhista Substitui Des. Nº Verificado Código/ Página Escala Desenho Nº Folha: Aprovado COELCE Companhia Energética do Ceará 154/162 SECIONAMENTO DE CERCAS TRANSVERSAIS DETALHES DE INSTALAÇÃO E MONTAGEM PS-052 S/E 052.50.0 2/2 PEDRO PAULO KEYLA 20 02 03 20 02 03 RELAÇÃO DE MATERIAL REF UNID QUANTIDADE CÓDIGO ETOQUE DESCRIÇÃO DO MATERIAL C-17 KG 03 6771522 CABO, ATERR, AÇO-CU, 7x10 AWG DES-805.02 R-7 UM 10 6770242 SECIONADOR, PREF CERCA, 3,25-4,11 mm DES-750.01 T-6 UM 01 6771313 HASTE, ATERR, AÇO-CU, CIRC, 13x2000 mm DES-800.01 T-8 UM 01 4543477 PÓ, SOLDA, CARTUCHO 115 g DES-820.40
  • 207.
    Desenhista Substitui Des. Nº Verificado Código/ Página Escala Desenho Nº Folha: Aprovado COELCE Companhia Energética do Ceará 160/162 HASTE PÁRA-RAIOS PERFIL “L” USO NAS ESTRUTURAS DA SUBESTAÇÃO DETALHES DE INSTALAÇÃO E MONTAGEM PS-052 S/E 052.54.0 2/2 PEDRO PAULO KEYLA 20 02 03 20 02 03 RELAÇÃO DE MATERIAL REF UNID QUANTIDADE CÓDIGO ESTOQUE DESCRIÇÃO DO MATERIAL C-3 KG 06 6771504 CABO CU NU 70mm² 19 FIOS MD DES-210.01 F-2 UMA 02 6770632 ARRUELA QUAD, AÇO ZINC, 50x3x18mm DES-410.03 F-6 UMA 02 6770646 ARRUELA RED, AÇO ZINC, 36x3x18mm DES-410.01 F-23 UM 02 6770306 PARAFUSO, CAB QUAD, AÇO ZINC, M16x250 DES-410.10 O-12 UM 01 6770949 CONECTOR, ATERR, CU, 16-70mm 2 DES-710.25 T-4 UM 01 6771012 HASTE, PÁRA-RAIOS, L-50x6x4500mm DES-157.10