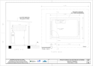
TN
ALV. PEDRA ARGAMASSADA
Cerca
DesenhoObs.:
Escala
CASA DE COMANDO
Planta Baixa e Cortes
01
1:40
3.50
2.80
3.30
3.17
1.50
e= 1/4"
PLANTA BAIXA
A
A
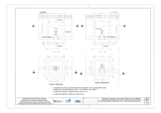
Vista Frontal
DesenhoObs.:
Escala
1:25
01
VISTA FRONTAL
1.30
3.90
PERFIL "I" DE 4" X 2 5/8"
PERFIL "U" DE 4"x1 5/8"
PERFIL "U" DE 4"x1 5/8"
3.28
.88 1.38
.85
MONOVIA
1.73
.40.45
2.60
VIGA " I " W 250x 44.8
5.00
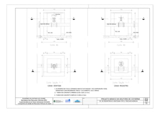
Vista Frontal
DesenhoObs.:
Escala
1:25
02
CORTE A-A
PERFIL "U" DE 4"x1 5/8"
.60
e=1/4" DN = 1.300mm L= 3.900 mm
MONOVIA - VIGA " I " DE 6x3 3/8"
TALHA CAP. 0,5 t
2.80
PERFIL "U" DE 4"x1 5/8"
.85
2.85
3.50
Corte AA
DesenhoObs.:
Escala
1:25
03
13
14
13
04
03
04
05
10
07
08
03
04
03
03
11
12
03
04
05
10
07
08
03
04
03
03
DesenhoObs.:
Escala
1:25
04
01
02
03
06
03
07
08
11 04 13
13
(mm)
250 -8
2200 507
2-
200 -1
2Tubo com flanges200 -9
2200 Dr6
2200 Ds5
5Tubo com flanges200 -4
10200 -3
2200 -2
QUANT.COMP.DN dnITEM
Tubo com flanges
1200 -12
1-200 -11
2Registro de gaveta200 -10
FoFo
MAT.
(mm) (mm)
2.500
500
250
FoFo
FoFo
FoFo
2-200 -13
1Tubo com flanges20014
09
14
250
250
250
1.000
Bloco apoio
em Concreto
03
03
DesenhoObs.:
Escala
1:30
05
1.50x2.10m
COMBOGO ANTI-RESPINGO 2.00x1.00m
EXTRAVASOR
ENTRADA
DRENAGEM
4.45
0204
06
07
01
0101
02
03
06
07
01
0101 02
01
03
03
03
10
01
11
4.80
12
BOMBA 01
BOMBA 02
03
05
02
01
06
07
QUADROS
DE
COMANDO
03
DesenhoObs.:
Escala
1:40
01
Planta Baixa
03
02
01
04
03
07
06
DesenhoObs.:
Escala
1:40
02
Corte AA
DesenhoObs.:
Escala
1:40
03
Corte BB
ESQUEMA DE MONTAGEM DA BOMBA 02
11 10 01 03 02 08
02
01
ESQUEMA DE MONTAGEM DA BOMBA 01
11 10 09 03
01 01
07
05 03
04 02
01
06
0802
01 01
07
05 03
04
06
DesenhoObs.:
Escala
1:30
04
Esquema de montagem das Bombas
(mm)
2250Tubo com flanges200FoFo8
2-50FoFo7
9-200FoFo1
2-200x200FoFo9
2250200x506
2250200xdr*5
2250200xds*4
4-200FoFo3
4500200FoFo2
QUANT.COMP.DNxdnMAT.ITEM
Tubo com flanges
12.000Tubo com flanges200FoFo11
1-200FoFo10
1-200FoFo01
1500Tubo com flanges200FoFo02
3-200FoFo03
13.000Tubo com flanges200FoFo04
05 1-Extremidade flange ponta200FoFo
1-Extremidade flange ponta100FoFo06
1-Registro de gaveta100FoFo07
DesenhoObs.:
Escala
-
05
A
1Registro de gaveta com flange150 -9
1Tubo com flange L=0,50 m200 -8
1200 1501
4150 -10
1Registro de gaveta com flange100 -7
1200 1006
1200 -5
1Junta de desmontagem200 -4
1200 -3
QUANT.DN dnITEM
Tubo com flange L=0,25 m
1Tubo com flange L=0,25 m150 -13
2Tubo com flange L=5,80 m150 -12
1Tubo com flange L=1,50 m150 -11
A
Planta Baixa
1150 -14
1Registro de gaveta com flange200 -2
7.00
5.00
Cerca
010204
03
11
05
09
1010
07
0608
Adutora
1Extremidade ponta flange150 -15
Corte AA
3.30
Cerca
15
10
Concreto Estrutural
Fck=25 Mpa
2.50
12
12
10
1315
.10
0104 03
05
02
01
08
07 06
10
14
.20
DesenhoObs.:
Escala
ONE WAY TIPO
Planta Baixa e Cortes
01
1:40
Blocos de Ancoragem
DesenhoObs.:
Escala
01
1:20
.20
.10
.297
.20
29.7cm
20cm
20cm
7.5 cm 10cm
A
.10
Planta Baixa
Corte AA
Corte BB
Vista
.075 .075
.220
.297
.147
.075 .147 .075
.20
.206
DesenhoObs.:
Escala
Planta Baixa e Cortes
01
CAIXA VENTOSA
PVC DN 200mm
1
AA
1
ou Pedra
Furo 10cm
CAIXA REGISTRO
PCV DN 200mm
1
A A
1
1- ALVENARIA EM TIJOLO CERAMICO MACICO 5X10X20CM 1/2 VEZ (ESPESSURA 10CM)
ASSENTADO COM ARGAMASSA TRACO 1:2:8 (CIMENTO, CAL E AREIA)
2- TAMPA EM CONCRETO ARMADO (0,90 x 0,90 x 0,15 m)
3- FUNDO EM CONCRETO SIMPLES 15 MPa h=10cm
Furo 5cm
Furo 10cm
Alv.1/2 vez
Alv.1/2 vez
CX. DE REGISTROS E VENTOSAS-TIPO 1 TRECHOS ENTERRADOS
DesenhoObs.:
Escala
01
1:20
CAIXA VENTOSA
1
AA
1
CAIXA REGISTRO
1
A
1
A
1- ALVENARIA EM TIJOLO CERAMICO MACICO 5X10X20CM 1 VEZ (ESPESSURA 10CM)
ASSENTADO COM ARGAMASSA TRACO 1:2:8 (CIMENTO, CAL E AREIA)
2- TAMPA EM CONCRETO ARMADO (0,90 x 0,90 x 0,15 m)
3- FUNDO EM CONCRETO SIMPLES 15 MPa h=10cm
Alv.1 vez
Alv.1 vez
Conc. 15 MPaConc. 15 MPa
Furo 10cm Furo 10cm
Furo 5cm
DesenhoObs.:
Escala
02
1:20
DesenhoObs.:
Escala
01
355
365
360
370
COTA DO TERRENO
ESTACA
Perfil Longitudinal
Esc: H:1/2000 V:1/200
PROJETADODATA
ARQUIVO:DATA:ESCALA:
1/2000
PRANCHA:
PLANTA E PERFIL DA ADUTORA
PP_ TOPO - CATARINAMaio/2017
LEGENDA
Adutora Projetada
375
380
385
390
395
1/44
COTA DO TERRENO
Perfil Longitudinal
Esc: H:1/2000 V:1/200
PROJETADODATA DESENHADO
ARQUIVO:DATA:ESCALA:
1/2000
PRANCHA:
PLANTA E PERFIL DA ADUTORA
PP_ TOPO - CATARINAMaio/2017
LEGENDA
Adutora Projetada
355
365
360
370
375
380
385
390
395
2/44
COTA DO TERRENO
ESTACA
Perfil Longitudinal
Esc: H:1/2000 V:1/200
PROJETADODATA
ARQUIVO:DATA:ESCALA:
1/2000
PRANCHA:
PLANTA E PERFIL DA ADUTORA
PP_ TOPO - CATARINAMaio/2017
LEGENDA
Adutora Projetada
355
365
360
370
375
380
385
390
395
3/44
COTA DO TERRENO
Perfil Longitudinal
Esc: H:1/2000 V:1/200
PROJETADODATA DESENHADO
ARQUIVO:DATA:ESCALA:
1/2000
PRANCHA:
PLANTA E PERFIL DA ADUTORA
PP_ TOPO - CATARINAMaio/2017
LEGENDA
Adutora Projetada
355
365
360
370
375
380
385
390
395
4/44
COTA DO TERRENO
Perfil Longitudinal
Esc: H:1/2000 V:1/200
PROJETADODATA DESENHADO
ARQUIVO:DATA:ESCALA:
1/2000
PRANCHA:
PLANTA E PERFIL DA ADUTORA
PP_ TOPO - CATARINAMaio/2017 5/44
LEGENDA
Adutora Projetada
365
360
370
375
380
385
390
395
400
COTA DO TERRENO
ESTACA
Perfil Longitudinal
Esc: H:1/2000 V:1/200
PROJETADODATA
ARQUIVO:DATA:ESCALA:
1/2000
PRANCHA:
PLANTA E PERFIL DA ADUTORA
PP_ TOPO - CATARINAMaio/2017
LEGENDA
Adutora Projetada
380
375
385
390
395
400
405
410
415
6/44
COTA DO TERRENO
ESTACA
Perfil Longitudinal
Esc: H:1/2000 V:1/200
DATA
ARQUIVO:DATA:ESCALA:
1/2000
PLANTA E PERFIL DA ADUTORA
PP_ TOPO - CATARINAMaio/2017
LEGENDA
Adutora Projetada
380
385
390
395
400
405
410
415
420
PRANCHA:
7/44
Perfil Longitudinal
Esc: H:1/2000 V:1/200
PROJETADODATA DESENHADO
ARQUIVO:DATA:ESCALA:
1/2000
PRANCHA:
PLANTA E PERFIL DA ADUTORA
PP_ TOPO - CATARINAMaio/2017 8/44
LEGENDA
Adutora Projetada
390
395
400
405
410
415
420
425
430
COTA DO TERRENO
ESTACA
Perfil Longitudinal
Esc: H:1/2000 V:1/200
PROJETADODATA DESENHADO
ARQUIVO:DATA:ESCALA:
1/2000
PRANCHA:
PLANTA E PERFIL DA ADUTORA
PP_ TOPO - CATARINAMaio/2017 9/44
LEGENDA
Adutora Projetada
390
395
400
405
410
415
420
425
430
COTA DO TERRENO
ESTACA
Perfil Longitudinal
Esc: H:1/2000 V:1/200
PROJETADODATA DESENHADO
ARQUIVO:DATA:ESCALA:
1/2000
PRANCHA:
PLANTA E PERFIL DA ADUTORA
PP_ TOPO - CATARINAMaio/2017 10/44
LEGENDA
Adutora Projetada
375
385
390
395
400
405
410
415
380
COTA DO TERRENO
ESTACA
PROJETADODATA DESENHADO
ARQUIVO:DATA:ESCALA:
1/2000
PRANCHA:
PLANTA E PERFIL DA ADUTORA
PP_ TOPO - CATARINAMaio/2017 11/44
LEGENDA
Adutora Projetada
375
380
385
390
395
400
405
410
415
COTA DO TERRENO
ESTACA
PROJETADODATA DESENHADO
ARQUIVO:DATA:ESCALA:
1/2000
PRANCHA:
PLANTA E PERFIL DA ADUTORA
PP_ TOPO - CATARINAMaio/2017 12/44
LEGENDA
Adutora Projetada
375
380
385
390
395
400
405
410
415
COTA DO TERRENO
ESTACA
PROJETADODATA DESENHADO
ARQUIVO:DATA:ESCALA:
1/2000
PRANCHA:
PLANTA E PERFIL DA ADUTORA
PP_ TOPO - CATARINAMaio/2017 13/44
LEGENDA
Adutora Projetada
385
390
395
400
405
410
415
420
425
COTA DO TERRENO
ESTACA
PROJETADODATA DESENHADO
ARQUIVO:DATA:ESCALA:
1/2000
PRANCHA:
PLANTA E PERFIL DA ADUTORA
PP_ TOPO - CATARINAMaio/2017 14/44
LEGENDA
Adutora Projetada
400
405
410
415
420
425
430
435
440
COTA DO TERRENO
ESTACA
PROJETADODATA DESENHADO
ARQUIVO:DATA:ESCALA:
1/2000
PRANCHA:
PLANTA E PERFIL DA ADUTORA
PP_ TOPO - CATARINAMaio/2017 15/44
LEGENDA
Adutora Projetada
405
410
415
420
425
430
435
440
445
COTA DO TERRENO
ESTACA
PROJETADODATA DESENHADO
ARQUIVO:DATA:ESCALA:
1/2000
PRANCHA:
PLANTA E PERFIL DA ADUTORA
PP_ TOPO - CATARINAMaio/2017 16/44
LEGENDA
Adutora Projetada
405
410
415
420
425
430
435
440
400
COTA DO TERRENO
ESTACA
PROJETADODATA DESENHADO
ARQUIVO:DATA:ESCALA:
1/2000
PRANCHA:
PLANTA E PERFIL DA ADUTORA
PP_ TOPO - CATARINAMaio/2017 17/44
LEGENDA
Adutora Projetada
405
410
415
420
425
430
435
440
400
COTA DO TERRENO
ESTACA
PROJETADODATA DESENHADO
ARQUIVO:DATA:ESCALA:
1/2000
PRANCHA:
PLANTA E PERFIL DA ADUTORA
PP_ TOPO - CATARINAMaio/2017 18/44
LEGENDA
Adutora Projetada
405
410
415
420
425
430
435
440
445
COTA DO TERRENO
ESTACA
PROJETADODATA DESENHADO
ARQUIVO:DATA:ESCALA:
1/2000
PRANCHA:
PLANTA E PERFIL DA ADUTORA
PP_ TOPO - CATARINAMaio/2017 19/44
LEGENDA
Adutora Projetada
405
410
415
420
425
430
435
440
400
COTA DO TERRENO
ESTACA
PROJETADODATA DESENHADO
ARQUIVO:DATA:ESCALA:
1/2000
PRANCHA:
PLANTA E PERFIL DA ADUTORA
PP_ TOPO - CATARINAMaio/2017 20/44
LEGENDA
Adutora Projetada
405
410
415
420
425
430
435
440
445
COTA DO TERRENO
ESTACA
PROJETADODATA DESENHADO
ARQUIVO:DATA:ESCALA:
1/2000
PRANCHA:
PLANTA E PERFIL DA ADUTORA
PP_ TOPO - CATARINAMaio/2017 21/44
LEGENDA
Adutora Projetada
405
410
415
420
425
430
435
440
445
COTA DO TERRENO
ESTACA
PROJETADODATA DESENHADO
ARQUIVO:DATA:ESCALA:
1/2000
PRANCHA:
PLANTA E PERFIL DA ADUTORA
PP_ TOPO - CATARINAMaio/2017 22/44
LEGENDA
Adutora Projetada
405
410
415
420
425
430
435
440
445
COTA DO TERRENO
ESTACA
PROJETADODATA DESENHADO
ARQUIVO:DATA:ESCALA:
1/2000
PRANCHA:
PLANTA E PERFIL DA ADUTORA
PP_ TOPO - CATARINAMaio/2017 23/44
LEGENDA
Adutora Projetada
405
410
415
420
425
430
435
440
445
COTA DO TERRENO
ESTACA
PROJETADODATA DESENHADO
ARQUIVO:DATA:ESCALA:
1/2000
PRANCHA:
PLANTA E PERFIL DA ADUTORA
PP_ TOPO - CATARINAMaio/2017 24/44
LEGENDA
Adutora Projetada
410
415
420
425
430
435
440
445
450
COTA DO TERRENO
ESTACA
PROJETADODATA DESENHADO
ARQUIVO:DATA:ESCALA:
1/2000
PRANCHA:
PLANTA E PERFIL DA ADUTORA
PP_ TOPO - CATARINAMaio/2017 25/44
LEGENDA
Adutora Projetada
415
420
425
430
435
440
445
450
455
COTA DO TERRENO
ESTACA
PROJETADODATA DESENHADO
ARQUIVO:DATA:ESCALA:
1/2000
PRANCHA:
PLANTA E PERFIL DA ADUTORA
PP_ TOPO - CATARINAMaio/2017 26/44
LEGENDA
Adutora Projetada
415
430
435
440
445
450
455
460
465
COTA DO TERRENO
ESTACA
PROJETADODATA DESENHADO
ARQUIVO:DATA:ESCALA:
1/2000
PRANCHA:
PLANTA E PERFIL DA ADUTORA
PP_ TOPO - CATARINAMaio/2017 27/44
LEGENDA
Adutora Projetada
435
440
445
450
455
460
465
470
475
COTA DO TERRENO
ESTACA
PROJETADODATA DESENHADO
ARQUIVO:DATA:ESCALA:
1/2000
PRANCHA:
PLANTA E PERFIL DA ADUTORA
PP_ TOPO - CATARINAMaio/2017 28/44
LEGENDA
Adutora Projetada
450
455
460
465
470
475
480
485
490
COTA DO TERRENO
ESTACA
PROJETADODATA DESENHADO
ARQUIVO:DATA:ESCALA:
1/2000
PRANCHA:
PLANTA E PERFIL DA ADUTORA
PP_ TOPO - CATARINAMaio/2017 29/44
LEGENDA
Adutora Projetada
450
455
460
465
470
475
480
485
490
COTA DO TERRENO
ESTACA
PROJETADODATA DESENHADO
ARQUIVO:DATA:ESCALA:
1/2000
PRANCHA:
PLANTA E PERFIL DA ADUTORA
PP_ TOPO - CATARINAMaio/2017 30/44
LEGENDA
Adutora Projetada
490
495
500
460
465
470
475
480
485
COTA DO TERRENO
ESTACA
PROJETADODATA DESENHADO
ARQUIVO:DATA:ESCALA:
1/2000
PRANCHA:
PLANTA E PERFIL DA ADUTORA
PP_ TOPO - CATARINAMaio/2017 31/44
LEGENDA
Adutora Projetada
490
495
500
460
465
470
475
480
485
COTA DO TERRENO
ESTACA
PROJETADODATA DESENHADO
ARQUIVO:DATA:ESCALA:
1/2000
PRANCHA:
PLANTA E PERFIL DA ADUTORA
PP_ TOPO - CATARINAMaio/2017 32/44
LEGENDA
Adutora Projetada
490
495
460
465
470
475
480
485
455
COTA DO TERRENO
ESTACA
PROJETADODATA DESENHADO
ARQUIVO:DATA:ESCALA:
1/2000
PRANCHA:
PLANTA E PERFIL DA ADUTORA
PP_ TOPO - CATARINAMaio/2017 33/44
LEGENDA
Adutora Projetada
460
465
470
475
480
485
455
450
445
COTA DO TERRENO
ESTACA
PROJETADODATA DESENHADO
ARQUIVO:DATA:ESCALA:
1/2000
PRANCHA:
PLANTA E PERFIL DA ADUTORA
PP_ TOPO - CATARINAMaio/2017 34/44
LEGENDA
Adutora Projetada
460
465
470
475
480
485
455
450
490
COTA DO TERRENO
ESTACA
PROJETADODATA DESENHADO
ARQUIVO:DATA:ESCALA:
1/2000
PRANCHA:
PLANTA E PERFIL DA ADUTORA
PP_ TOPO - CATARINAMaio/2017 35/44
LEGENDA
Adutora Projetada
460
465
470
475
480
485
455
490
495
470
475
480
485
490
495
500
505
510
COTA DO TERRENO
ESTACA
PROJETADODATA DESENHADO
ARQUIVO:DATA:ESCALA:
1/2000
PRANCHA:
PLANTA E PERFIL DA ADUTORA
PP_ TOPO - CATARINAMaio/2017 36/44
LEGENDA
Adutora Projetada
465
475
480
485
490
495
500
460
470
COTA DO TERRENO
ESTACA
PROJETADODATA DESENHADO
ARQUIVO:DATA:ESCALA:
1/2000
PRANCHA:
PLANTA E PERFIL DA ADUTORA
PP_ TOPO - CATARINAMaio/2017 37/44
LEGENDA
Adutora Projetada
435
440
445
450
455
460
465
470
475
COTA DO TERRENO
ESTACA
PROJETADODATA DESENHADO
ARQUIVO:DATA:ESCALA:
1/2000
PRANCHA:
PLANTA E PERFIL DA ADUTORA
PP_ TOPO - CATARINAMaio/2017 38/44
LEGENDA
Adutora Projetada
445
450
455
460
465
470
475
480
485
COTA DO TERRENO
ESTACA
PROJETADODATA DESENHADO
ARQUIVO:DATA:ESCALA:
1/2000
PRANCHA:
PLANTA E PERFIL DA ADUTORA
PP_ TOPO - CATARINAMaio/2017 39/44
LEGENDA
Adutora Projetada
475
480
485
490
495
500
505
510
515
505
510
515
520
525
530
535
540
545
COTA DO TERRENO
ESTACA
PROJETADODATA DESENHADO
ARQUIVO:DATA:ESCALA:
1/2000
PRANCHA:
PLANTA E PERFIL DA ADUTORA
PP_ TOPO - CATARINAMaio/2017 40/44
LEGENDA
Adutora Projetada
535
540
545
550
555
560
565
570
575
COTA DO TERRENO
ESTACA
PROJETADODATA DESENHADO
ARQUIVO:DATA:ESCALA:
1/2000
PRANCHA:
PLANTA E PERFIL DA ADUTORA
PP_ TOPO - CATARINAMaio/2017 41/44
LEGENDA
Adutora Projetada
565
570
575
580
585
590
595
600
605
COTA DO TERRENO
ESTACA
PROJETADODATA DESENHADO
ARQUIVO:DATA:ESCALA:
1/2000
PRANCHA:
PLANTA E PERFIL DA ADUTORA
PP_ TOPO - CATARINAMaio/2017 42/44
LEGENDA
Adutora Projetada
575
580
585
590
595
600
605
610
615
COTA DO TERRENO
ESTACA
PROJETADODATA DESENHADO
ARQUIVO:DATA:ESCALA:
1/2000
PRANCHA:
PLANTA E PERFIL DA ADUTORA
PP_ TOPO - CATARINAMaio/2017 43/44
LEGENDA
Adutora Projetada
575
580
585
590
595
600
605
610
615
COTA DO TERRENO
ESTACA
PROJETADODATA DESENHADO
ARQUIVO:DATA:ESCALA:
1/2000
PRANCHA:
PLANTA E PERFIL DA ADUTORA
PP_ TOPO - CATARINAMaio/2017 44/44
LEGENDA
Adutora Projetada
575
580
585
590
595
600
605
610
570

Projeto da adutora arneiroz catarina

  • 3.
    TN ALV. PEDRA ARGAMASSADA Cerca DesenhoObs.: Escala CASADE COMANDO Planta Baixa e Cortes 01 1:40
  • 5.
  • 6.
    VISTA FRONTAL 1.30 3.90 PERFIL "I"DE 4" X 2 5/8" PERFIL "U" DE 4"x1 5/8" PERFIL "U" DE 4"x1 5/8" 3.28 .88 1.38 .85 MONOVIA 1.73 .40.45 2.60 VIGA " I " W 250x 44.8 5.00 Vista Frontal DesenhoObs.: Escala 1:25 02
  • 7.
    CORTE A-A PERFIL "U"DE 4"x1 5/8" .60 e=1/4" DN = 1.300mm L= 3.900 mm MONOVIA - VIGA " I " DE 6x3 3/8" TALHA CAP. 0,5 t 2.80 PERFIL "U" DE 4"x1 5/8" .85 2.85 3.50 Corte AA DesenhoObs.: Escala 1:25 03
  • 8.
  • 9.
    01 02 03 06 03 07 08 11 04 13 13 (mm) 250-8 2200 507 2- 200 -1 2Tubo com flanges200 -9 2200 Dr6 2200 Ds5 5Tubo com flanges200 -4 10200 -3 2200 -2 QUANT.COMP.DN dnITEM Tubo com flanges 1200 -12 1-200 -11 2Registro de gaveta200 -10 FoFo MAT. (mm) (mm) 2.500 500 250 FoFo FoFo FoFo 2-200 -13 1Tubo com flanges20014 09 14 250 250 250 1.000 Bloco apoio em Concreto 03 03 DesenhoObs.: Escala 1:30 05
  • 11.
    1.50x2.10m COMBOGO ANTI-RESPINGO 2.00x1.00m EXTRAVASOR ENTRADA DRENAGEM 4.45 0204 06 07 01 0101 02 03 06 07 01 010102 01 03 03 03 10 01 11 4.80 12 BOMBA 01 BOMBA 02 03 05 02 01 06 07 QUADROS DE COMANDO 03 DesenhoObs.: Escala 1:40 01 Planta Baixa
  • 12.
  • 13.
  • 14.
    ESQUEMA DE MONTAGEMDA BOMBA 02 11 10 01 03 02 08 02 01 ESQUEMA DE MONTAGEM DA BOMBA 01 11 10 09 03 01 01 07 05 03 04 02 01 06 0802 01 01 07 05 03 04 06 DesenhoObs.: Escala 1:30 04 Esquema de montagem das Bombas
  • 15.
    (mm) 2250Tubo com flanges200FoFo8 2-50FoFo7 9-200FoFo1 2-200x200FoFo9 2250200x506 2250200xdr*5 2250200xds*4 4-200FoFo3 4500200FoFo2 QUANT.COMP.DNxdnMAT.ITEM Tubocom flanges 12.000Tubo com flanges200FoFo11 1-200FoFo10 1-200FoFo01 1500Tubo com flanges200FoFo02 3-200FoFo03 13.000Tubo com flanges200FoFo04 05 1-Extremidade flange ponta200FoFo 1-Extremidade flange ponta100FoFo06 1-Registro de gaveta100FoFo07 DesenhoObs.: Escala - 05
  • 17.
    A 1Registro de gavetacom flange150 -9 1Tubo com flange L=0,50 m200 -8 1200 1501 4150 -10 1Registro de gaveta com flange100 -7 1200 1006 1200 -5 1Junta de desmontagem200 -4 1200 -3 QUANT.DN dnITEM Tubo com flange L=0,25 m 1Tubo com flange L=0,25 m150 -13 2Tubo com flange L=5,80 m150 -12 1Tubo com flange L=1,50 m150 -11 A Planta Baixa 1150 -14 1Registro de gaveta com flange200 -2 7.00 5.00 Cerca 010204 03 11 05 09 1010 07 0608 Adutora 1Extremidade ponta flange150 -15 Corte AA 3.30 Cerca 15 10 Concreto Estrutural Fck=25 Mpa 2.50 12 12 10 1315 .10 0104 03 05 02 01 08 07 06 10 14 .20 DesenhoObs.: Escala ONE WAY TIPO Planta Baixa e Cortes 01 1:40
  • 19.
  • 20.
    .20 .10 .297 .20 29.7cm 20cm 20cm 7.5 cm 10cm A .10 PlantaBaixa Corte AA Corte BB Vista .075 .075 .220 .297 .147 .075 .147 .075 .20 .206 DesenhoObs.: Escala Planta Baixa e Cortes 01
  • 21.
    CAIXA VENTOSA PVC DN200mm 1 AA 1 ou Pedra Furo 10cm CAIXA REGISTRO PCV DN 200mm 1 A A 1 1- ALVENARIA EM TIJOLO CERAMICO MACICO 5X10X20CM 1/2 VEZ (ESPESSURA 10CM) ASSENTADO COM ARGAMASSA TRACO 1:2:8 (CIMENTO, CAL E AREIA) 2- TAMPA EM CONCRETO ARMADO (0,90 x 0,90 x 0,15 m) 3- FUNDO EM CONCRETO SIMPLES 15 MPa h=10cm Furo 5cm Furo 10cm Alv.1/2 vez Alv.1/2 vez CX. DE REGISTROS E VENTOSAS-TIPO 1 TRECHOS ENTERRADOS DesenhoObs.: Escala 01 1:20
  • 22.
    CAIXA VENTOSA 1 AA 1 CAIXA REGISTRO 1 A 1 A 1-ALVENARIA EM TIJOLO CERAMICO MACICO 5X10X20CM 1 VEZ (ESPESSURA 10CM) ASSENTADO COM ARGAMASSA TRACO 1:2:8 (CIMENTO, CAL E AREIA) 2- TAMPA EM CONCRETO ARMADO (0,90 x 0,90 x 0,15 m) 3- FUNDO EM CONCRETO SIMPLES 15 MPa h=10cm Alv.1 vez Alv.1 vez Conc. 15 MPaConc. 15 MPa Furo 10cm Furo 10cm Furo 5cm DesenhoObs.: Escala 02 1:20
  • 23.
  • 25.
    355 365 360 370 COTA DO TERRENO ESTACA PerfilLongitudinal Esc: H:1/2000 V:1/200 PROJETADODATA ARQUIVO:DATA:ESCALA: 1/2000 PRANCHA: PLANTA E PERFIL DA ADUTORA PP_ TOPO - CATARINAMaio/2017 LEGENDA Adutora Projetada 375 380 385 390 395 1/44
  • 26.
    COTA DO TERRENO PerfilLongitudinal Esc: H:1/2000 V:1/200 PROJETADODATA DESENHADO ARQUIVO:DATA:ESCALA: 1/2000 PRANCHA: PLANTA E PERFIL DA ADUTORA PP_ TOPO - CATARINAMaio/2017 LEGENDA Adutora Projetada 355 365 360 370 375 380 385 390 395 2/44
  • 27.
    COTA DO TERRENO ESTACA PerfilLongitudinal Esc: H:1/2000 V:1/200 PROJETADODATA ARQUIVO:DATA:ESCALA: 1/2000 PRANCHA: PLANTA E PERFIL DA ADUTORA PP_ TOPO - CATARINAMaio/2017 LEGENDA Adutora Projetada 355 365 360 370 375 380 385 390 395 3/44
  • 28.
    COTA DO TERRENO PerfilLongitudinal Esc: H:1/2000 V:1/200 PROJETADODATA DESENHADO ARQUIVO:DATA:ESCALA: 1/2000 PRANCHA: PLANTA E PERFIL DA ADUTORA PP_ TOPO - CATARINAMaio/2017 LEGENDA Adutora Projetada 355 365 360 370 375 380 385 390 395 4/44
  • 29.
    COTA DO TERRENO PerfilLongitudinal Esc: H:1/2000 V:1/200 PROJETADODATA DESENHADO ARQUIVO:DATA:ESCALA: 1/2000 PRANCHA: PLANTA E PERFIL DA ADUTORA PP_ TOPO - CATARINAMaio/2017 5/44 LEGENDA Adutora Projetada 365 360 370 375 380 385 390 395 400
  • 30.
    COTA DO TERRENO ESTACA PerfilLongitudinal Esc: H:1/2000 V:1/200 PROJETADODATA ARQUIVO:DATA:ESCALA: 1/2000 PRANCHA: PLANTA E PERFIL DA ADUTORA PP_ TOPO - CATARINAMaio/2017 LEGENDA Adutora Projetada 380 375 385 390 395 400 405 410 415 6/44
  • 31.
    COTA DO TERRENO ESTACA PerfilLongitudinal Esc: H:1/2000 V:1/200 DATA ARQUIVO:DATA:ESCALA: 1/2000 PLANTA E PERFIL DA ADUTORA PP_ TOPO - CATARINAMaio/2017 LEGENDA Adutora Projetada 380 385 390 395 400 405 410 415 420 PRANCHA: 7/44
  • 32.
    Perfil Longitudinal Esc: H:1/2000V:1/200 PROJETADODATA DESENHADO ARQUIVO:DATA:ESCALA: 1/2000 PRANCHA: PLANTA E PERFIL DA ADUTORA PP_ TOPO - CATARINAMaio/2017 8/44 LEGENDA Adutora Projetada 390 395 400 405 410 415 420 425 430
  • 33.
    COTA DO TERRENO ESTACA PerfilLongitudinal Esc: H:1/2000 V:1/200 PROJETADODATA DESENHADO ARQUIVO:DATA:ESCALA: 1/2000 PRANCHA: PLANTA E PERFIL DA ADUTORA PP_ TOPO - CATARINAMaio/2017 9/44 LEGENDA Adutora Projetada 390 395 400 405 410 415 420 425 430
  • 34.
    COTA DO TERRENO ESTACA PerfilLongitudinal Esc: H:1/2000 V:1/200 PROJETADODATA DESENHADO ARQUIVO:DATA:ESCALA: 1/2000 PRANCHA: PLANTA E PERFIL DA ADUTORA PP_ TOPO - CATARINAMaio/2017 10/44 LEGENDA Adutora Projetada 375 385 390 395 400 405 410 415 380
  • 35.
    COTA DO TERRENO ESTACA PROJETADODATADESENHADO ARQUIVO:DATA:ESCALA: 1/2000 PRANCHA: PLANTA E PERFIL DA ADUTORA PP_ TOPO - CATARINAMaio/2017 11/44 LEGENDA Adutora Projetada 375 380 385 390 395 400 405 410 415
  • 36.
    COTA DO TERRENO ESTACA PROJETADODATADESENHADO ARQUIVO:DATA:ESCALA: 1/2000 PRANCHA: PLANTA E PERFIL DA ADUTORA PP_ TOPO - CATARINAMaio/2017 12/44 LEGENDA Adutora Projetada 375 380 385 390 395 400 405 410 415
  • 37.
    COTA DO TERRENO ESTACA PROJETADODATADESENHADO ARQUIVO:DATA:ESCALA: 1/2000 PRANCHA: PLANTA E PERFIL DA ADUTORA PP_ TOPO - CATARINAMaio/2017 13/44 LEGENDA Adutora Projetada 385 390 395 400 405 410 415 420 425
  • 38.
    COTA DO TERRENO ESTACA PROJETADODATADESENHADO ARQUIVO:DATA:ESCALA: 1/2000 PRANCHA: PLANTA E PERFIL DA ADUTORA PP_ TOPO - CATARINAMaio/2017 14/44 LEGENDA Adutora Projetada 400 405 410 415 420 425 430 435 440
  • 39.
    COTA DO TERRENO ESTACA PROJETADODATADESENHADO ARQUIVO:DATA:ESCALA: 1/2000 PRANCHA: PLANTA E PERFIL DA ADUTORA PP_ TOPO - CATARINAMaio/2017 15/44 LEGENDA Adutora Projetada 405 410 415 420 425 430 435 440 445
  • 40.
    COTA DO TERRENO ESTACA PROJETADODATADESENHADO ARQUIVO:DATA:ESCALA: 1/2000 PRANCHA: PLANTA E PERFIL DA ADUTORA PP_ TOPO - CATARINAMaio/2017 16/44 LEGENDA Adutora Projetada 405 410 415 420 425 430 435 440 400
  • 41.
    COTA DO TERRENO ESTACA PROJETADODATADESENHADO ARQUIVO:DATA:ESCALA: 1/2000 PRANCHA: PLANTA E PERFIL DA ADUTORA PP_ TOPO - CATARINAMaio/2017 17/44 LEGENDA Adutora Projetada 405 410 415 420 425 430 435 440 400
  • 42.
    COTA DO TERRENO ESTACA PROJETADODATADESENHADO ARQUIVO:DATA:ESCALA: 1/2000 PRANCHA: PLANTA E PERFIL DA ADUTORA PP_ TOPO - CATARINAMaio/2017 18/44 LEGENDA Adutora Projetada 405 410 415 420 425 430 435 440 445
  • 43.
    COTA DO TERRENO ESTACA PROJETADODATADESENHADO ARQUIVO:DATA:ESCALA: 1/2000 PRANCHA: PLANTA E PERFIL DA ADUTORA PP_ TOPO - CATARINAMaio/2017 19/44 LEGENDA Adutora Projetada 405 410 415 420 425 430 435 440 400
  • 44.
    COTA DO TERRENO ESTACA PROJETADODATADESENHADO ARQUIVO:DATA:ESCALA: 1/2000 PRANCHA: PLANTA E PERFIL DA ADUTORA PP_ TOPO - CATARINAMaio/2017 20/44 LEGENDA Adutora Projetada 405 410 415 420 425 430 435 440 445
  • 45.
    COTA DO TERRENO ESTACA PROJETADODATADESENHADO ARQUIVO:DATA:ESCALA: 1/2000 PRANCHA: PLANTA E PERFIL DA ADUTORA PP_ TOPO - CATARINAMaio/2017 21/44 LEGENDA Adutora Projetada 405 410 415 420 425 430 435 440 445
  • 46.
    COTA DO TERRENO ESTACA PROJETADODATADESENHADO ARQUIVO:DATA:ESCALA: 1/2000 PRANCHA: PLANTA E PERFIL DA ADUTORA PP_ TOPO - CATARINAMaio/2017 22/44 LEGENDA Adutora Projetada 405 410 415 420 425 430 435 440 445
  • 47.
    COTA DO TERRENO ESTACA PROJETADODATADESENHADO ARQUIVO:DATA:ESCALA: 1/2000 PRANCHA: PLANTA E PERFIL DA ADUTORA PP_ TOPO - CATARINAMaio/2017 23/44 LEGENDA Adutora Projetada 405 410 415 420 425 430 435 440 445
  • 48.
    COTA DO TERRENO ESTACA PROJETADODATADESENHADO ARQUIVO:DATA:ESCALA: 1/2000 PRANCHA: PLANTA E PERFIL DA ADUTORA PP_ TOPO - CATARINAMaio/2017 24/44 LEGENDA Adutora Projetada 410 415 420 425 430 435 440 445 450
  • 49.
    COTA DO TERRENO ESTACA PROJETADODATADESENHADO ARQUIVO:DATA:ESCALA: 1/2000 PRANCHA: PLANTA E PERFIL DA ADUTORA PP_ TOPO - CATARINAMaio/2017 25/44 LEGENDA Adutora Projetada 415 420 425 430 435 440 445 450 455
  • 50.
    COTA DO TERRENO ESTACA PROJETADODATADESENHADO ARQUIVO:DATA:ESCALA: 1/2000 PRANCHA: PLANTA E PERFIL DA ADUTORA PP_ TOPO - CATARINAMaio/2017 26/44 LEGENDA Adutora Projetada 415 430 435 440 445 450 455 460 465
  • 51.
    COTA DO TERRENO ESTACA PROJETADODATADESENHADO ARQUIVO:DATA:ESCALA: 1/2000 PRANCHA: PLANTA E PERFIL DA ADUTORA PP_ TOPO - CATARINAMaio/2017 27/44 LEGENDA Adutora Projetada 435 440 445 450 455 460 465 470 475
  • 52.
    COTA DO TERRENO ESTACA PROJETADODATADESENHADO ARQUIVO:DATA:ESCALA: 1/2000 PRANCHA: PLANTA E PERFIL DA ADUTORA PP_ TOPO - CATARINAMaio/2017 28/44 LEGENDA Adutora Projetada 450 455 460 465 470 475 480 485 490
  • 53.
    COTA DO TERRENO ESTACA PROJETADODATADESENHADO ARQUIVO:DATA:ESCALA: 1/2000 PRANCHA: PLANTA E PERFIL DA ADUTORA PP_ TOPO - CATARINAMaio/2017 29/44 LEGENDA Adutora Projetada 450 455 460 465 470 475 480 485 490
  • 54.
    COTA DO TERRENO ESTACA PROJETADODATADESENHADO ARQUIVO:DATA:ESCALA: 1/2000 PRANCHA: PLANTA E PERFIL DA ADUTORA PP_ TOPO - CATARINAMaio/2017 30/44 LEGENDA Adutora Projetada 490 495 500 460 465 470 475 480 485
  • 55.
    COTA DO TERRENO ESTACA PROJETADODATADESENHADO ARQUIVO:DATA:ESCALA: 1/2000 PRANCHA: PLANTA E PERFIL DA ADUTORA PP_ TOPO - CATARINAMaio/2017 31/44 LEGENDA Adutora Projetada 490 495 500 460 465 470 475 480 485
  • 56.
    COTA DO TERRENO ESTACA PROJETADODATADESENHADO ARQUIVO:DATA:ESCALA: 1/2000 PRANCHA: PLANTA E PERFIL DA ADUTORA PP_ TOPO - CATARINAMaio/2017 32/44 LEGENDA Adutora Projetada 490 495 460 465 470 475 480 485 455
  • 57.
    COTA DO TERRENO ESTACA PROJETADODATADESENHADO ARQUIVO:DATA:ESCALA: 1/2000 PRANCHA: PLANTA E PERFIL DA ADUTORA PP_ TOPO - CATARINAMaio/2017 33/44 LEGENDA Adutora Projetada 460 465 470 475 480 485 455 450 445
  • 58.
    COTA DO TERRENO ESTACA PROJETADODATADESENHADO ARQUIVO:DATA:ESCALA: 1/2000 PRANCHA: PLANTA E PERFIL DA ADUTORA PP_ TOPO - CATARINAMaio/2017 34/44 LEGENDA Adutora Projetada 460 465 470 475 480 485 455 450 490
  • 59.
    COTA DO TERRENO ESTACA PROJETADODATADESENHADO ARQUIVO:DATA:ESCALA: 1/2000 PRANCHA: PLANTA E PERFIL DA ADUTORA PP_ TOPO - CATARINAMaio/2017 35/44 LEGENDA Adutora Projetada 460 465 470 475 480 485 455 490 495 470 475 480 485 490 495 500 505 510
  • 60.
    COTA DO TERRENO ESTACA PROJETADODATADESENHADO ARQUIVO:DATA:ESCALA: 1/2000 PRANCHA: PLANTA E PERFIL DA ADUTORA PP_ TOPO - CATARINAMaio/2017 36/44 LEGENDA Adutora Projetada 465 475 480 485 490 495 500 460 470
  • 61.
    COTA DO TERRENO ESTACA PROJETADODATADESENHADO ARQUIVO:DATA:ESCALA: 1/2000 PRANCHA: PLANTA E PERFIL DA ADUTORA PP_ TOPO - CATARINAMaio/2017 37/44 LEGENDA Adutora Projetada 435 440 445 450 455 460 465 470 475
  • 62.
    COTA DO TERRENO ESTACA PROJETADODATADESENHADO ARQUIVO:DATA:ESCALA: 1/2000 PRANCHA: PLANTA E PERFIL DA ADUTORA PP_ TOPO - CATARINAMaio/2017 38/44 LEGENDA Adutora Projetada 445 450 455 460 465 470 475 480 485
  • 63.
    COTA DO TERRENO ESTACA PROJETADODATADESENHADO ARQUIVO:DATA:ESCALA: 1/2000 PRANCHA: PLANTA E PERFIL DA ADUTORA PP_ TOPO - CATARINAMaio/2017 39/44 LEGENDA Adutora Projetada 475 480 485 490 495 500 505 510 515 505 510 515 520 525 530 535 540 545
  • 64.
    COTA DO TERRENO ESTACA PROJETADODATADESENHADO ARQUIVO:DATA:ESCALA: 1/2000 PRANCHA: PLANTA E PERFIL DA ADUTORA PP_ TOPO - CATARINAMaio/2017 40/44 LEGENDA Adutora Projetada 535 540 545 550 555 560 565 570 575
  • 65.
    COTA DO TERRENO ESTACA PROJETADODATADESENHADO ARQUIVO:DATA:ESCALA: 1/2000 PRANCHA: PLANTA E PERFIL DA ADUTORA PP_ TOPO - CATARINAMaio/2017 41/44 LEGENDA Adutora Projetada 565 570 575 580 585 590 595 600 605
  • 66.
    COTA DO TERRENO ESTACA PROJETADODATADESENHADO ARQUIVO:DATA:ESCALA: 1/2000 PRANCHA: PLANTA E PERFIL DA ADUTORA PP_ TOPO - CATARINAMaio/2017 42/44 LEGENDA Adutora Projetada 575 580 585 590 595 600 605 610 615
  • 67.
    COTA DO TERRENO ESTACA PROJETADODATADESENHADO ARQUIVO:DATA:ESCALA: 1/2000 PRANCHA: PLANTA E PERFIL DA ADUTORA PP_ TOPO - CATARINAMaio/2017 43/44 LEGENDA Adutora Projetada 575 580 585 590 595 600 605 610 615
  • 68.
    COTA DO TERRENO ESTACA PROJETADODATADESENHADO ARQUIVO:DATA:ESCALA: 1/2000 PRANCHA: PLANTA E PERFIL DA ADUTORA PP_ TOPO - CATARINAMaio/2017 44/44 LEGENDA Adutora Projetada 575 580 585 590 595 600 605 610 570