Arquitetura e Urbanismo   Projeto VI
MACKENZIE

Universidade Presbiteriana Mackenzie
Faculdade de Arquitetura e Urbanismo




Projeto de Arquitetura VI
1º Semestre 2006 – Matutino / Vespertino




- Estrutura do texto e seleção das imagens
  Arq. Augusto França
  Arq. Cristine Gallinaro
- Projeto Gráfico - Diagramação
  Arq. Julio Cezar Bernardes Pinto




C. Manual Técnico                            Manual Técnico               C 01
Arquitetura e Urbanismo   Projeto VI
MACKENZIE




Este manual tem por finalidade dar suporte técnico aos alunos da disciplina de Projeto VI, fornecendo-
lhes os dados técnicos necessários à elaboração de projetos de edifícios verticais, enfatizando os aspectos
relativos às condições de abastecimento e segurança das edificações.



Conteúdo:

1. Circulação e vagas para veículos
2. Equipamentos sanitários
3. Aeração
4. Classificação dos volumes
5. Circulação - Escadas e rampas
6. Circulação mecânica




                                                                                                              Manual Técnico               C 02
Arquitetura e Urbanismo   Projeto VI
MACKENZIE
1. Circulação e vagas para veículos
Acesso:

O acesso de veículos em lotes de esquina deverá distar, no mínimo, 6,00m (seis metros)
do início do ponto de encontro do prolongamento dos alinhamentos dos logradouros,
excetuadas as edificações residenciais unifamiliares.

Circulação:

As faixas de circulação de veículos deverão apresentar dimensões mínimas, para cada
sentido de tráfego, de:

a) 2,75m (dois metros e setenta e cinco centímetros) de largura e 2,30m (dois metros e
trinta centímetros) de altura livre de passagem quando destinadas à circulação de
automóveis e utilitários.
b) 3,50m (três metros e cinqüenta centímetros) de largura e 3,50m (três metros e cinqüenta
centímetros) de altura livre de passagem quando destinadas à circulação de caminhões e
ônibus.

Será admitida uma única faixa de circulação quando esta se destinar, no máximo, ao trânsito
de 60 (sessenta) veículos em edificações de uso habitacional e 30 (trinta) veículos nos
demais usos.

As rampas deverão apresentar:

a) recuo de 4m do alinhamento dos logradouros para seu início;
b) declividade máxima de 20% (vinte por cento) quando destinada à circulação de
automóveis e utilitários;
c) declividade máxima de 12% (doze por cento) quando destinada à circulação de caminhões
e ônibus.

                                                                                              Manual Técnico               C 03
Arquitetura e Urbanismo   Projeto VI
MACKENZIE
As rampas para automóveis e utilitários, em residências unifamiliares, terão declividade
máxima de 25% (vinte e cinco por cento) podendo iniciar no alinhamento.

Espaços de manobra e estacionamento:

A vaga, quando paralela à faixa de acesso (“baliza”) será acrescido 1,00m (um metro) no
comprimento e 0,25m (vinte e cinco centímetros) na largura para automóveis e utilitários,
e 2,00m (dois metros) no comprimento e 1,00m (um metro) na largura para caminhões e
ônibus.




                                                                                            Manual Técnico               C 04
Arquitetura e Urbanismo   Projeto VI
MACKENZIE




            Manual Técnico               C 05
Arquitetura e Urbanismo   Projeto VI
MACKENZIE




            Manual Técnico               C 06
Arquitetura e Urbanismo   Projeto VI
MACKENZIE




            Manual Técnico               C 07
Arquitetura e Urbanismo   Projeto VI
MACKENZIE




            Manual Técnico               C 08
Arquitetura e Urbanismo   Projeto VI
MACKENZIE
2. Equipamentos sanitários
As edificações destinadas a uso residencial unifamiliar e multifamiliar deverão dispor de
instalações sanitárias nas seguintes quantidades mínimas:

a) casas e apartamentos: 1 (uma) bacia, 1 (um) lavatório e 1 (um) chuveiro;
b) áreas de uso comum de edificações multifamiliares: 1 (uma) bacia, 1 (um) lavatório e 1
(um) chuveiro, separados por sexo.

As demais edificações deverão dispor de instalações sanitárias nas seguintes quantidades
mínimas:

a) hospitais ou clínicas com internação, hotéis e similares: 1 (uma) bacia, 1 (um) lavatório
e 1 (um) chuveiro para cada 2 (duas) unidades de internação ou hospedagem, e 1 (uma)
bacia e 1 (um) lavatório para cada 20 (vinte) pessoas nas demais áreas, descontadas deste
cálculo as áreas destinadas a internação ou hospedagem;
b) locais de reunião: 1 (uma) bacia e 1 (um) lavatório para cada 50 pessoas;
c) outras destinações: 1 (uma) bacia e 1 (um) lavatório para cada 20 pessoas.

Quando o número de pessoas for superior a 20 (vinte) haverá, necessariamente, instalações
sanitárias separadas por sexo.

Nos sanitários masculinos, 50% (cinqüenta por cento) das bacias poderão ser substituídas
por mictórios.

Toda edificação não residencial deverá dispor, no mínimo, de uma instalação sanitária
por sexo, distante, no máximo 50m (cinqüenta metros) de percurso real de qualquer ponto,
podendo se situar em andar contíguo ao considerado.

As áreas de uso comum de edificações multifamiliares (prédios de apartamentos) exceto
HIS, deverão dispor de dois conjuntos sanitários, destinados um a cada sexo, contendo:
                                                                                               Manual Técnico               C 09
Arquitetura e Urbanismo   Projeto VI
MACKENZIE
1 (uma) bacia, 1 (um) lavatório, 1 (um) chuveiro.

Será obrigatória a previsão de, no mínimo, uma bacia e um lavatório por sexo, junto a todo
compartimento destinado a consumição de alimentos, situados no mesmo pavimento deste.

Serão providas de antecâmara ou anteparo, as instalações sanitárias que derem acesso
direto a compartimentos destinados a trabalho, refeitório ou consumição de alimentos.

Quando, em razão da atividade desenvolvida, for prevista a instalação de chuveiros, estes
serão calculados na proporção de um para cada 20 (vinte) usuários.

Serão obrigatórias instalações sanitárias para pessoas portadoras de deficiências físicas
na relação de 3% (três por cento) do total de sanitários estabelcidos no cálculo. Esta
exigência refere-se aos seguintes usos:

a) locais de reunião;
b) qualquer outro uso com mais de 600 (seiscentas) pessoas.

Os lavatórios e mictórios coletivos dispostos em cocho serão dimensionados à razão de
0,60m (sessenta centímetros) por usuário.




                                                                                             Manual Técnico                C 010
Arquitetura e Urbanismo   Projeto VI
MACKENZIE




            Manual Técnico                C 011
Arquitetura e Urbanismo   Projeto VI
MACKENZIE




            Manual Técnico                C 012
Arquitetura e Urbanismo   Projeto VI
MACKENZIE




            Manual Técnico                C 013
Arquitetura e Urbanismo   Projeto VI
MACKENZIE




            Manual Técnico                C 014
Arquitetura e Urbanismo           Projeto VI
MACKENZIE




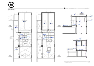
            Planta Baixa - Reservatório Inferior / Subsolo




                                                              Corte Reservatório Inferior / Subsolo




                                                             Manual Técnico                        C 015
Arquitetura e Urbanismo   Projeto VI
MACKENZIE
3.0 Aeração da edificação

A aeração da edificação será definida pela implantação de uma faixa denominada de “faixa
A”,, que deverá circundar toda a edificação, e cuja fórmula para seu cálculo é a seguinte:

                                   A = 3 + 0,35(N-14)

Onde as variantes são as seguintes:

 A = dimensão da faixa A
 N = número de pavimentos da edificação.

Portanto, a faixa A é diretamente proporcional à altura do edifício.

Obs.: A fórmula pode ser aplicada pavimento por pavimento, o que poderia resultar em
um edifício “escalonado”.



3.1 Aplicabilidade

Na página seguinte segue exemplo gráfico de como se deve aplicar a faixa livre “A”




                                                                                             Manual Técnico                C 016
Arquitetura e Urbanismo   Projeto VI
MACKENZIE
3.2 Exemplos práticos
Abaixo exemplo de aplicação da faixa livre “A” em edifício simulado:




                                                                       Manual Técnico                C 017
Arquitetura e Urbanismo   Projeto VI
MACKENZIE
3.2 Exemplos práticos
Abaixo exemplo de aplicação da faixa “A” em edifício simulado




                                                                Manual Técnico                C 018
Arquitetura e Urbanismo   Projeto VI
MACKENZIE
3.3 Exemplos de cálculo

Simulemos, para exemplificarmos, três situações:

a. Um edifício com térreo mais 9 pavimentos, o que perfaz um total de 10 pavimentos:
  Cálculo da faixa A= 3 + 0,35 (10-14) = 3 + 0,35 . -4 = 1,60
   Neste caso adota-se o recúo mínimo de 3,00 m.

b. Um edifício com térreo mais 13 pavimentos, o que perfaz um total de 14 pavimentos:
 Cálculo da faixa A= 3 + 0,35 (14-14) = 3,00 m.

c. Um edifício com térreo mais 21 pavimentos, o que perfaz um total de 22 pavimentos:
  Cálculo da faixa A= 3 + 0,35 (22-14) = 5,80 m.

E assim sucessivamente.




                                                                                        Manual Técnico                C 019
Arquitetura e Urbanismo   Projeto VI
MACKENZIE
4.0 Classificação dos volumes

Toda e qualquer edificação, seja vertical ou não, terá por definição 3 (três) volumes:

VOLUME ENTERRADO : Ve

VOLUME INFERIOR:               Vi

VOLUME SUPERIOR:              Vs


Na página seguinte, segue desenho ilustrativo




* A aplicação da faixa livre “A” está subordinada à sua aplicação APENAS no volume superior da edificação.
O volume inferior (Vi) pode conter até 3 (três) pavimentos, ou um máximo de 10 (dez) metros de altura,
contados a partir do ponto médio da guia fronteiriça ao lote.



                                                                                                             Manual Técnico                C 020
Arquitetura e Urbanismo   Projeto VI
MACKENZIE




            Manual Técnico                C 021
Arquitetura e Urbanismo   Projeto VI
MACKENZIE

5.0 Circulações
Definem-se como espaços para circulação, todos os espaços destinados à circulação de
pedestres, ou seja, mais precisamente rampas, corredores e escadas.


5.1 Escadas

Toda e qualquer edificação que tenha mais de um pavimento, deverá conter uma escada
para acesso aos pisos inferiores e/ou superiores, sendo que acima de 2 pavimentos a serem
acessados, a mesma deverá ser de segurança.

É denominada de escada de segurança o elemento construtivo que tem como finalidade a
fuga dos usuários de uma edificação em caso de pânico, e portanto, dispõe de um desenho
próprio para tanto (ver ilustração abaixo).

Toda escada de segurança deve conter os seguintes elementos:

a. Portas corta-fogo, com abertura no sentido da fuga.
b. Uma ante-câmara, a ser dimensionada de acordo com a ilustração seguinte.
c. Um duto de ventilação, a ser localizado na ante-câmara.
d. É vedada a execução de degraus em leque.
e. O dimensionamento dos degraus deve respeitar os seguintes parâmetros mínimos:
      0,17 m para os espelhos.
      0,27 m para os pisos.
f. É obrigatória a execução de corrimãos.
g. Quando houver ventilação permanente na ante-câmara , sua área não deverá ultrapassar
   0,70 m2.
h. Quando houver ventilação natural na caixa da escada , sua área não deverá ultrapassar
   0,50 m2.


                                                                                            Manual Técnico                C 022
Arquitetura e Urbanismo   Projeto VI
MACKENZIE


a. Escadas enclausuradas (com antecâmara)




                                            Manual Técnico                C 023
Arquitetura e Urbanismo   Projeto VI
MACKENZIE


a. Escadas enclausuradas (com antecâmara)




                                            Manual Técnico                C 024
Arquitetura e Urbanismo   Projeto VI
MACKENZIE

c. Escada externa
Esta tipologia tem limitação máxima de altura de 10,00 m; contada do a partir do pavimento
térreo até o último piso de acesso.




                                                                                             Manual Técnico                C 025
Arquitetura e Urbanismo   Projeto VI
MACKENZIE

d. Saída de escape no pavimento térreo

Para qualquer das soluções de escada de segurança a ser adotada, a saída deverá ser
obrigatoriamente pelo pavimento TÉRREO, bem como a escada que liga o(s) sub-solos(s),
conforme o desenho abaixo:




        Planta Térreo                                  Planta tipo
                                                                                        Manual Técnico                C 026
Arquitetura e Urbanismo   Projeto VI
MACKENZIE


“12.H.3. - Sem prejuízo do dimensionamento dos espaços de circulação coletiva calculados
conforme Seção 12.7 do COE, as edificações deverão dispor, no mínimo, das escadas
constantes na seguinte tebela:”




“Nota: ‘Ho’ entre a cota do pavimento de saída e a cota do último pavimento, excluído o
ático”.


                                                                                           Manual Técnico                C 027
Arquitetura e Urbanismo   Projeto VI
MACKENZIE
5.2 Rampas

É permitida a utilização de rampas para acesso vertical, desde que se respeite os seguintes
parâmetros:

 Largura mínima de 1,20 m para acesso a locais cuja lotação não exceda a 100 pessoas
 para um único local de reunião ou a qualquer pavimento que não detenha um uso com
 mais de 600 pessoas.
 Qualquer dimensionamento que venha a exceder este número, será necessário que se
 proceda ao cálculo de lotação, onde a largura da rampa deve ser projetada em função do
 cálculo de escoamento (ver Seção 12-F do Decreto 32.329 de 23/09/92, o Código de Obras
 e Edificações)

 A declividade da rampa não deve ultrapassar 10 (dez) por cento e acima de 6 (seis) por
 cento, a mesma deverá ser revestida em seu piso com material anti-derrapante.
(ver tabela página seguinte)



5.3 Corrredores

Os corredores para circulação interna das edificações deverão obedecer às seguintes
dimensões:

 1,50 m de fronte aos elevadores.
 1,20 m como largura padrão mínima para todo e qualquer edifício onde haja circulação
 semi-pública (edifícios em geral, sejam de apartamentos, escritórios, comerciais, etc.)
 0,90 m para as denominadas de circulações privativas: mezaninos de lojas modulares,
 acessos internos de escritórios, residências unifamiliares, etc.).



                                                                                              Manual Técnico                C 028
Arquitetura e Urbanismo   Projeto VI
MACKENZIE




            Manual Técnico                C 029
Arquitetura e Urbanismo   Projeto VI
MACKENZIE
6.0 Circulação mecânica

São chamadas de circulações mecânicas aquelas que se utilizam de equipamentos mecânicos
para a locomoção, tanto de usuários quanto de cargas, macas (no caso de hospitais), autos
e similares, etc.

As chamadas circulações verticais podem ser sub-divididas em 3 famílias:

Elevadores:
 Hidráulicos
 Mecânicos de passageiros.
 Mecânicos de carga e monta cargas.

Escadas rolantes

Esteiras rolantes




                                                                                            Manual Técnico                C 030
Arquitetura e Urbanismo   Projeto VI
MACKENZIE
6.1Elevadores

Todo e qualquer projeto de um edifício vertical, pressupõe a especificação de 2 ou mais
elevadores. No entanto, a localização dos mesmos deve seguir alguns critérios para que se
faça a especificação correta. São eles:


a. dimensionamento
O dimensionamento da cabine* deve seguir sempre o cálculo da lotação da edificação, ou
seja, o número de viagens a ser considerado é função direta do número de pessoas que
acessam o edifício na mesma hora.




                                                                                            Manual Técnico                C 031
Arquitetura e Urbanismo   Projeto VI
MACKENZIE

b. disposição
A disposição dos elevadores deve ter como principal objetivo o bom direcionamento do
fluxo das pessoas. Abaixo seguem alguns exemplos de situações que devem ser evitadas:




                                                                                        Manual Técnico                C 032
Arquitetura e Urbanismo   Projeto VI
MACKENZIE
c. Tipologias

c.1 Elevadores hidráulicos

São chamados de hidráulicos aqueles movidos por energia gerada através de um pistão
hidráulico, localizado na casa de máquinas que, via de regra, deve ser localizada em um
poço a ser edificado no sub-solo, ou no nível imediatamente inferior ao da primeira parada.

Os elevadores hidráulicos apesar de se mostrarem mais onerosos que os mecânicos, são
mais silenciosos e mais suaves. Alguns shoppings centers como o Market Place, o D&D e o
Serra Azul utilizam este tipo de elevador.

Na página seguinte estão os desenhos que ilustram as condições técnicas para que se execute
uma instalação para elevadores hidráulicos:




                                                                                              Manual Técnico                C 033
Arquitetura e Urbanismo   Projeto VI
MACKENZIE




            Manual Técnico                C 034
Arquitetura e Urbanismo   Projeto VI
MACKENZIE
c.2 Elevadores mecânicos
Os elevadores mecânicos operam basicamente com força mecânica, gerada por um motor
que aciona a cabine, que por sua vez em conjunto com um contrapeso, constituem um
sistema equilibrado.
Via de regra as cabines são dimensionadas de acordo com a tabela apresentada na página seguinte:

Para sua operação, são necessários os seguintes elementos:
 Casa de máquinas, onde serão localizados os motores, o quadro de força, o quadro de
 comando, o quadro elétrico e as roldanas. (ilustração na página seguinte)
 Uma cabine para acolhimento dos usuários, que deverá ser dimensionada de acordo com
 a tabela anterior e cujo desenho está representado abaixo:
 Um conjunto de alçapões (ver corte)
 Um poço a ser localizado abaixo do pavimento de última parada (ver corte)




                                                                                                   Manual Técnico                C 035
Arquitetura e Urbanismo   Projeto VI
MACKENZIE




            Manual Técnico                C 036
Arquitetura e Urbanismo   Projeto VI
MACKENZIE
c.3 Elevadores de carga e monta-cargas

Estes elevadores operam da mesma forma que o mecânico de passageiros, porém tanto o
motor quanto o sistema de freios e o contrapeso, são proporcionais à capacidade do
elevador.

Enquanto os monta-cargas oferecem cabines de 1,20 x 1,20 m em média, os de carga chegam
a 2,00 x 2,40 m. O dimensionamento é sempre elaborado em função do tipo de carga a ser
trasnportada.




                                                                                          Manual Técnico                C 037
Arquitetura e Urbanismo   Projeto VI
MACKENZIE
c.4 Elevadores panorâmicos
São definidos como panorâmicos os elevadores compostos por um ou mais caixilhos
envidraçados.

Podem ser de dois tipos:
. Totalmente externos.
Encaixilhados, onde a cabine além de conter um ou mais fechamentos laterias em vidro,
estão enclausurados em um caixilho do edifício.




                 Tipo Externo
                                                                                        Manual Técnico                C 038
Arquitetura e Urbanismo   Projeto VI
MACKENZIE




                     Tipo Encaixilhado
     Tipo Externo




                    Manual Técnico                C 039
Arquitetura e Urbanismo   Projeto VI
MACKENZIE
6.2 Escadas Rolantes

São utilizadas em geral em áreas comerciais (Shopping centers) ou em áreas públicas com
grande fluxo de pessoas, que venham a justificar a sua utilização.

São movidas por força mecânica, assim como os elevadores, e requerem um grade cuidado
ao serem especificadas, pois solicitam um grande esforço ao se apoiarem na estrutura do
edifício, uma vez que seu peso próprio é bastente considerável.

Na página seguinte segue o dimensionamento exemplificado:




                                                                                          Manual Técnico                C 040
Arquitetura e Urbanismo   Projeto VI
MACKENZIE




            Manual Técnico                C 041
Arquitetura e Urbanismo   Projeto VI
MACKENZIE
6.3 Esteiras rolantes

Da mesma forma que as escadas rolantes, as esteiras também requerem um certo cuidado
com relação ao seu apoio à estrutura do edifício.

Por ser uma rampa, necessita de uma inclinação máxima de 15 (quinze) por cento . Porém
aconselha-se a utilização de uma inclinação de 10 (dez) por cento.

A sua utilização não é muito pouco frequente, pois é dispendiosa e também por necessitar
de espaço para a sua implantação. Por exemplo, uma escada para acessar um desnível de 3
metros com inclinação de 15%, terá que ter aproximadamente 20 metros de comprimento.

Em geral, as esteiras rolantes são utilizadas somente em Hiper e Super mercados, por
facilitarem a locomoção de seus usuários com os carrinhos.




                                                                                           Manual Técnico                C 042

Manual tecnico

  • 1.
    Arquitetura e Urbanismo Projeto VI MACKENZIE Universidade Presbiteriana Mackenzie Faculdade de Arquitetura e Urbanismo Projeto de Arquitetura VI 1º Semestre 2006 – Matutino / Vespertino - Estrutura do texto e seleção das imagens Arq. Augusto França Arq. Cristine Gallinaro - Projeto Gráfico - Diagramação Arq. Julio Cezar Bernardes Pinto C. Manual Técnico Manual Técnico C 01
  • 2.
    Arquitetura e Urbanismo Projeto VI MACKENZIE Este manual tem por finalidade dar suporte técnico aos alunos da disciplina de Projeto VI, fornecendo- lhes os dados técnicos necessários à elaboração de projetos de edifícios verticais, enfatizando os aspectos relativos às condições de abastecimento e segurança das edificações. Conteúdo: 1. Circulação e vagas para veículos 2. Equipamentos sanitários 3. Aeração 4. Classificação dos volumes 5. Circulação - Escadas e rampas 6. Circulação mecânica Manual Técnico C 02
  • 3.
    Arquitetura e Urbanismo Projeto VI MACKENZIE 1. Circulação e vagas para veículos Acesso: O acesso de veículos em lotes de esquina deverá distar, no mínimo, 6,00m (seis metros) do início do ponto de encontro do prolongamento dos alinhamentos dos logradouros, excetuadas as edificações residenciais unifamiliares. Circulação: As faixas de circulação de veículos deverão apresentar dimensões mínimas, para cada sentido de tráfego, de: a) 2,75m (dois metros e setenta e cinco centímetros) de largura e 2,30m (dois metros e trinta centímetros) de altura livre de passagem quando destinadas à circulação de automóveis e utilitários. b) 3,50m (três metros e cinqüenta centímetros) de largura e 3,50m (três metros e cinqüenta centímetros) de altura livre de passagem quando destinadas à circulação de caminhões e ônibus. Será admitida uma única faixa de circulação quando esta se destinar, no máximo, ao trânsito de 60 (sessenta) veículos em edificações de uso habitacional e 30 (trinta) veículos nos demais usos. As rampas deverão apresentar: a) recuo de 4m do alinhamento dos logradouros para seu início; b) declividade máxima de 20% (vinte por cento) quando destinada à circulação de automóveis e utilitários; c) declividade máxima de 12% (doze por cento) quando destinada à circulação de caminhões e ônibus. Manual Técnico C 03
  • 4.
    Arquitetura e Urbanismo Projeto VI MACKENZIE As rampas para automóveis e utilitários, em residências unifamiliares, terão declividade máxima de 25% (vinte e cinco por cento) podendo iniciar no alinhamento. Espaços de manobra e estacionamento: A vaga, quando paralela à faixa de acesso (“baliza”) será acrescido 1,00m (um metro) no comprimento e 0,25m (vinte e cinco centímetros) na largura para automóveis e utilitários, e 2,00m (dois metros) no comprimento e 1,00m (um metro) na largura para caminhões e ônibus. Manual Técnico C 04
  • 5.
    Arquitetura e Urbanismo Projeto VI MACKENZIE Manual Técnico C 05
  • 6.
    Arquitetura e Urbanismo Projeto VI MACKENZIE Manual Técnico C 06
  • 7.
    Arquitetura e Urbanismo Projeto VI MACKENZIE Manual Técnico C 07
  • 8.
    Arquitetura e Urbanismo Projeto VI MACKENZIE Manual Técnico C 08
  • 9.
    Arquitetura e Urbanismo Projeto VI MACKENZIE 2. Equipamentos sanitários As edificações destinadas a uso residencial unifamiliar e multifamiliar deverão dispor de instalações sanitárias nas seguintes quantidades mínimas: a) casas e apartamentos: 1 (uma) bacia, 1 (um) lavatório e 1 (um) chuveiro; b) áreas de uso comum de edificações multifamiliares: 1 (uma) bacia, 1 (um) lavatório e 1 (um) chuveiro, separados por sexo. As demais edificações deverão dispor de instalações sanitárias nas seguintes quantidades mínimas: a) hospitais ou clínicas com internação, hotéis e similares: 1 (uma) bacia, 1 (um) lavatório e 1 (um) chuveiro para cada 2 (duas) unidades de internação ou hospedagem, e 1 (uma) bacia e 1 (um) lavatório para cada 20 (vinte) pessoas nas demais áreas, descontadas deste cálculo as áreas destinadas a internação ou hospedagem; b) locais de reunião: 1 (uma) bacia e 1 (um) lavatório para cada 50 pessoas; c) outras destinações: 1 (uma) bacia e 1 (um) lavatório para cada 20 pessoas. Quando o número de pessoas for superior a 20 (vinte) haverá, necessariamente, instalações sanitárias separadas por sexo. Nos sanitários masculinos, 50% (cinqüenta por cento) das bacias poderão ser substituídas por mictórios. Toda edificação não residencial deverá dispor, no mínimo, de uma instalação sanitária por sexo, distante, no máximo 50m (cinqüenta metros) de percurso real de qualquer ponto, podendo se situar em andar contíguo ao considerado. As áreas de uso comum de edificações multifamiliares (prédios de apartamentos) exceto HIS, deverão dispor de dois conjuntos sanitários, destinados um a cada sexo, contendo: Manual Técnico C 09
  • 10.
    Arquitetura e Urbanismo Projeto VI MACKENZIE 1 (uma) bacia, 1 (um) lavatório, 1 (um) chuveiro. Será obrigatória a previsão de, no mínimo, uma bacia e um lavatório por sexo, junto a todo compartimento destinado a consumição de alimentos, situados no mesmo pavimento deste. Serão providas de antecâmara ou anteparo, as instalações sanitárias que derem acesso direto a compartimentos destinados a trabalho, refeitório ou consumição de alimentos. Quando, em razão da atividade desenvolvida, for prevista a instalação de chuveiros, estes serão calculados na proporção de um para cada 20 (vinte) usuários. Serão obrigatórias instalações sanitárias para pessoas portadoras de deficiências físicas na relação de 3% (três por cento) do total de sanitários estabelcidos no cálculo. Esta exigência refere-se aos seguintes usos: a) locais de reunião; b) qualquer outro uso com mais de 600 (seiscentas) pessoas. Os lavatórios e mictórios coletivos dispostos em cocho serão dimensionados à razão de 0,60m (sessenta centímetros) por usuário. Manual Técnico C 010
  • 11.
    Arquitetura e Urbanismo Projeto VI MACKENZIE Manual Técnico C 011
  • 12.
    Arquitetura e Urbanismo Projeto VI MACKENZIE Manual Técnico C 012
  • 13.
    Arquitetura e Urbanismo Projeto VI MACKENZIE Manual Técnico C 013
  • 14.
    Arquitetura e Urbanismo Projeto VI MACKENZIE Manual Técnico C 014
  • 15.
    Arquitetura e Urbanismo Projeto VI MACKENZIE Planta Baixa - Reservatório Inferior / Subsolo Corte Reservatório Inferior / Subsolo Manual Técnico C 015
  • 16.
    Arquitetura e Urbanismo Projeto VI MACKENZIE 3.0 Aeração da edificação A aeração da edificação será definida pela implantação de uma faixa denominada de “faixa A”,, que deverá circundar toda a edificação, e cuja fórmula para seu cálculo é a seguinte: A = 3 + 0,35(N-14) Onde as variantes são as seguintes: A = dimensão da faixa A N = número de pavimentos da edificação. Portanto, a faixa A é diretamente proporcional à altura do edifício. Obs.: A fórmula pode ser aplicada pavimento por pavimento, o que poderia resultar em um edifício “escalonado”. 3.1 Aplicabilidade Na página seguinte segue exemplo gráfico de como se deve aplicar a faixa livre “A” Manual Técnico C 016
  • 17.
    Arquitetura e Urbanismo Projeto VI MACKENZIE 3.2 Exemplos práticos Abaixo exemplo de aplicação da faixa livre “A” em edifício simulado: Manual Técnico C 017
  • 18.
    Arquitetura e Urbanismo Projeto VI MACKENZIE 3.2 Exemplos práticos Abaixo exemplo de aplicação da faixa “A” em edifício simulado Manual Técnico C 018
  • 19.
    Arquitetura e Urbanismo Projeto VI MACKENZIE 3.3 Exemplos de cálculo Simulemos, para exemplificarmos, três situações: a. Um edifício com térreo mais 9 pavimentos, o que perfaz um total de 10 pavimentos: Cálculo da faixa A= 3 + 0,35 (10-14) = 3 + 0,35 . -4 = 1,60 Neste caso adota-se o recúo mínimo de 3,00 m. b. Um edifício com térreo mais 13 pavimentos, o que perfaz um total de 14 pavimentos: Cálculo da faixa A= 3 + 0,35 (14-14) = 3,00 m. c. Um edifício com térreo mais 21 pavimentos, o que perfaz um total de 22 pavimentos: Cálculo da faixa A= 3 + 0,35 (22-14) = 5,80 m. E assim sucessivamente. Manual Técnico C 019
  • 20.
    Arquitetura e Urbanismo Projeto VI MACKENZIE 4.0 Classificação dos volumes Toda e qualquer edificação, seja vertical ou não, terá por definição 3 (três) volumes: VOLUME ENTERRADO : Ve VOLUME INFERIOR: Vi VOLUME SUPERIOR: Vs Na página seguinte, segue desenho ilustrativo * A aplicação da faixa livre “A” está subordinada à sua aplicação APENAS no volume superior da edificação. O volume inferior (Vi) pode conter até 3 (três) pavimentos, ou um máximo de 10 (dez) metros de altura, contados a partir do ponto médio da guia fronteiriça ao lote. Manual Técnico C 020
  • 21.
    Arquitetura e Urbanismo Projeto VI MACKENZIE Manual Técnico C 021
  • 22.
    Arquitetura e Urbanismo Projeto VI MACKENZIE 5.0 Circulações Definem-se como espaços para circulação, todos os espaços destinados à circulação de pedestres, ou seja, mais precisamente rampas, corredores e escadas. 5.1 Escadas Toda e qualquer edificação que tenha mais de um pavimento, deverá conter uma escada para acesso aos pisos inferiores e/ou superiores, sendo que acima de 2 pavimentos a serem acessados, a mesma deverá ser de segurança. É denominada de escada de segurança o elemento construtivo que tem como finalidade a fuga dos usuários de uma edificação em caso de pânico, e portanto, dispõe de um desenho próprio para tanto (ver ilustração abaixo). Toda escada de segurança deve conter os seguintes elementos: a. Portas corta-fogo, com abertura no sentido da fuga. b. Uma ante-câmara, a ser dimensionada de acordo com a ilustração seguinte. c. Um duto de ventilação, a ser localizado na ante-câmara. d. É vedada a execução de degraus em leque. e. O dimensionamento dos degraus deve respeitar os seguintes parâmetros mínimos: 0,17 m para os espelhos. 0,27 m para os pisos. f. É obrigatória a execução de corrimãos. g. Quando houver ventilação permanente na ante-câmara , sua área não deverá ultrapassar 0,70 m2. h. Quando houver ventilação natural na caixa da escada , sua área não deverá ultrapassar 0,50 m2. Manual Técnico C 022
  • 23.
    Arquitetura e Urbanismo Projeto VI MACKENZIE a. Escadas enclausuradas (com antecâmara) Manual Técnico C 023
  • 24.
    Arquitetura e Urbanismo Projeto VI MACKENZIE a. Escadas enclausuradas (com antecâmara) Manual Técnico C 024
  • 25.
    Arquitetura e Urbanismo Projeto VI MACKENZIE c. Escada externa Esta tipologia tem limitação máxima de altura de 10,00 m; contada do a partir do pavimento térreo até o último piso de acesso. Manual Técnico C 025
  • 26.
    Arquitetura e Urbanismo Projeto VI MACKENZIE d. Saída de escape no pavimento térreo Para qualquer das soluções de escada de segurança a ser adotada, a saída deverá ser obrigatoriamente pelo pavimento TÉRREO, bem como a escada que liga o(s) sub-solos(s), conforme o desenho abaixo: Planta Térreo Planta tipo Manual Técnico C 026
  • 27.
    Arquitetura e Urbanismo Projeto VI MACKENZIE “12.H.3. - Sem prejuízo do dimensionamento dos espaços de circulação coletiva calculados conforme Seção 12.7 do COE, as edificações deverão dispor, no mínimo, das escadas constantes na seguinte tebela:” “Nota: ‘Ho’ entre a cota do pavimento de saída e a cota do último pavimento, excluído o ático”. Manual Técnico C 027
  • 28.
    Arquitetura e Urbanismo Projeto VI MACKENZIE 5.2 Rampas É permitida a utilização de rampas para acesso vertical, desde que se respeite os seguintes parâmetros: Largura mínima de 1,20 m para acesso a locais cuja lotação não exceda a 100 pessoas para um único local de reunião ou a qualquer pavimento que não detenha um uso com mais de 600 pessoas. Qualquer dimensionamento que venha a exceder este número, será necessário que se proceda ao cálculo de lotação, onde a largura da rampa deve ser projetada em função do cálculo de escoamento (ver Seção 12-F do Decreto 32.329 de 23/09/92, o Código de Obras e Edificações) A declividade da rampa não deve ultrapassar 10 (dez) por cento e acima de 6 (seis) por cento, a mesma deverá ser revestida em seu piso com material anti-derrapante. (ver tabela página seguinte) 5.3 Corrredores Os corredores para circulação interna das edificações deverão obedecer às seguintes dimensões: 1,50 m de fronte aos elevadores. 1,20 m como largura padrão mínima para todo e qualquer edifício onde haja circulação semi-pública (edifícios em geral, sejam de apartamentos, escritórios, comerciais, etc.) 0,90 m para as denominadas de circulações privativas: mezaninos de lojas modulares, acessos internos de escritórios, residências unifamiliares, etc.). Manual Técnico C 028
  • 29.
    Arquitetura e Urbanismo Projeto VI MACKENZIE Manual Técnico C 029
  • 30.
    Arquitetura e Urbanismo Projeto VI MACKENZIE 6.0 Circulação mecânica São chamadas de circulações mecânicas aquelas que se utilizam de equipamentos mecânicos para a locomoção, tanto de usuários quanto de cargas, macas (no caso de hospitais), autos e similares, etc. As chamadas circulações verticais podem ser sub-divididas em 3 famílias: Elevadores: Hidráulicos Mecânicos de passageiros. Mecânicos de carga e monta cargas. Escadas rolantes Esteiras rolantes Manual Técnico C 030
  • 31.
    Arquitetura e Urbanismo Projeto VI MACKENZIE 6.1Elevadores Todo e qualquer projeto de um edifício vertical, pressupõe a especificação de 2 ou mais elevadores. No entanto, a localização dos mesmos deve seguir alguns critérios para que se faça a especificação correta. São eles: a. dimensionamento O dimensionamento da cabine* deve seguir sempre o cálculo da lotação da edificação, ou seja, o número de viagens a ser considerado é função direta do número de pessoas que acessam o edifício na mesma hora. Manual Técnico C 031
  • 32.
    Arquitetura e Urbanismo Projeto VI MACKENZIE b. disposição A disposição dos elevadores deve ter como principal objetivo o bom direcionamento do fluxo das pessoas. Abaixo seguem alguns exemplos de situações que devem ser evitadas: Manual Técnico C 032
  • 33.
    Arquitetura e Urbanismo Projeto VI MACKENZIE c. Tipologias c.1 Elevadores hidráulicos São chamados de hidráulicos aqueles movidos por energia gerada através de um pistão hidráulico, localizado na casa de máquinas que, via de regra, deve ser localizada em um poço a ser edificado no sub-solo, ou no nível imediatamente inferior ao da primeira parada. Os elevadores hidráulicos apesar de se mostrarem mais onerosos que os mecânicos, são mais silenciosos e mais suaves. Alguns shoppings centers como o Market Place, o D&D e o Serra Azul utilizam este tipo de elevador. Na página seguinte estão os desenhos que ilustram as condições técnicas para que se execute uma instalação para elevadores hidráulicos: Manual Técnico C 033
  • 34.
    Arquitetura e Urbanismo Projeto VI MACKENZIE Manual Técnico C 034
  • 35.
    Arquitetura e Urbanismo Projeto VI MACKENZIE c.2 Elevadores mecânicos Os elevadores mecânicos operam basicamente com força mecânica, gerada por um motor que aciona a cabine, que por sua vez em conjunto com um contrapeso, constituem um sistema equilibrado. Via de regra as cabines são dimensionadas de acordo com a tabela apresentada na página seguinte: Para sua operação, são necessários os seguintes elementos: Casa de máquinas, onde serão localizados os motores, o quadro de força, o quadro de comando, o quadro elétrico e as roldanas. (ilustração na página seguinte) Uma cabine para acolhimento dos usuários, que deverá ser dimensionada de acordo com a tabela anterior e cujo desenho está representado abaixo: Um conjunto de alçapões (ver corte) Um poço a ser localizado abaixo do pavimento de última parada (ver corte) Manual Técnico C 035
  • 36.
    Arquitetura e Urbanismo Projeto VI MACKENZIE Manual Técnico C 036
  • 37.
    Arquitetura e Urbanismo Projeto VI MACKENZIE c.3 Elevadores de carga e monta-cargas Estes elevadores operam da mesma forma que o mecânico de passageiros, porém tanto o motor quanto o sistema de freios e o contrapeso, são proporcionais à capacidade do elevador. Enquanto os monta-cargas oferecem cabines de 1,20 x 1,20 m em média, os de carga chegam a 2,00 x 2,40 m. O dimensionamento é sempre elaborado em função do tipo de carga a ser trasnportada. Manual Técnico C 037
  • 38.
    Arquitetura e Urbanismo Projeto VI MACKENZIE c.4 Elevadores panorâmicos São definidos como panorâmicos os elevadores compostos por um ou mais caixilhos envidraçados. Podem ser de dois tipos: . Totalmente externos. Encaixilhados, onde a cabine além de conter um ou mais fechamentos laterias em vidro, estão enclausurados em um caixilho do edifício. Tipo Externo Manual Técnico C 038
  • 39.
    Arquitetura e Urbanismo Projeto VI MACKENZIE Tipo Encaixilhado Tipo Externo Manual Técnico C 039
  • 40.
    Arquitetura e Urbanismo Projeto VI MACKENZIE 6.2 Escadas Rolantes São utilizadas em geral em áreas comerciais (Shopping centers) ou em áreas públicas com grande fluxo de pessoas, que venham a justificar a sua utilização. São movidas por força mecânica, assim como os elevadores, e requerem um grade cuidado ao serem especificadas, pois solicitam um grande esforço ao se apoiarem na estrutura do edifício, uma vez que seu peso próprio é bastente considerável. Na página seguinte segue o dimensionamento exemplificado: Manual Técnico C 040
  • 41.
    Arquitetura e Urbanismo Projeto VI MACKENZIE Manual Técnico C 041
  • 42.
    Arquitetura e Urbanismo Projeto VI MACKENZIE 6.3 Esteiras rolantes Da mesma forma que as escadas rolantes, as esteiras também requerem um certo cuidado com relação ao seu apoio à estrutura do edifício. Por ser uma rampa, necessita de uma inclinação máxima de 15 (quinze) por cento . Porém aconselha-se a utilização de uma inclinação de 10 (dez) por cento. A sua utilização não é muito pouco frequente, pois é dispendiosa e também por necessitar de espaço para a sua implantação. Por exemplo, uma escada para acessar um desnível de 3 metros com inclinação de 15%, terá que ter aproximadamente 20 metros de comprimento. Em geral, as esteiras rolantes são utilizadas somente em Hiper e Super mercados, por facilitarem a locomoção de seus usuários com os carrinhos. Manual Técnico C 042