Instalações 
Comerciais 
Anderson 
Gabriela 
Gabriel 
Mauricio 
Patrine
Introdução 
• Iniciaremos nossa apresentação de Instalações Comerciais 
falando sobre alguns conceitos de modo geral e depois 
daremos sequência falando sobre suas aplicações, circuitos e 
estruturas.
Conceitos 
• Uma instalação elétrica é definida pelo conjunto de materiais e 
componentes elétricos essenciais ao funcionamento de um circuito 
ou sistema elétrico. 
• Em um projeto elétrico, as plantas e os detalhes representam a 
instalação elétrica, enquanto os circuítos elétricos envolventes 
representam o sistema elétrico. 
• As instalações elétricas são projetadas de acordo com normas e 
regulamentos definidos, principalmente, pela, ABNT, que visa 
observar determinados aspectos, como, Segurança, Eficiência e 
Qualidade Energética. 
• As instalações são regulamentadas pela norma NBR-5410, que 
apresenta um conjunto de regras e prescrições que permitem ao 
profissional e ao contratante, fazer uma inspeção na instalação, seja 
ela uma reforma, construção ou ate uma simples manutenção.
• Uma instalação elétrica lida com a transferência da energia 
que vem de uma fonte, como um gerador ou uma usina 
hidrelétrica, lida com a localização dos pontos de utilização da 
energia elétrica, como uma tomada, ou um interruptor, lida 
com os comandos, trajeto dos condutores, divisão em 
circuitos, dispositivos de manobra, carga de cada circuito, 
carga total. 
• As instalações comerciais necessitam de uma instalação 
elétrica que forneça mais energia, com implemento de uma 
rede trifásica. 
• Para fazer a instalação comercial é necessário um conjunto de 
disjuntores, fusíveis, cabos elétricos, eletrodutos, eletrocalhas, 
conduletes, perfilados, entre outros.
Aplicações 
• Em um projeto de uma instalação elétrica edificada, é 
preciso: 
• Localizar, determinar e quantificar os pontos de utilização 
de energia elétrica; 
• Dimensionar e definir o caminho dos condutores e 
condutos; 
• Dimensionar, definir o tipo e a localização dos dispositivos 
de proteção, de comando, de medição de energia elétrica 
e outros acessórios;
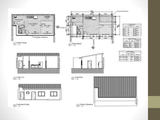
Partes que compõe um projeto elétrico: 
• Plantas; 
• Esquemas (uni filares e outros que se façam necessários); 
• Detalhes de montagem, quando necessários; 
• Memorial descritivo; 
• Memória de cálculo (dimensionamento de condutores, 
condutos e proteções); 
• ART : é um registro que todo profissional precisa para 
construir seu Acervo Técnico. Fundamental para as 
realizações dos projetos e também para a carreira.
• Critérios para a elaboração de projetos : 
• Acessibilidade; 
• Flexibilidade (para pequenas alterações) e reserva de carga (para 
acréscimos de cargas futuras); 
• Funcionamento e segurança; 
Etapas para elaboração de um projeto de instalação elétrica : 
• Plantas de situação; 
• Projeto arquitetônico; 
• Projetos complementares; 
• Informações obtidas do proprietário; 
• Quantificação do sistema: 
• Levantamento da previsão de cargas (quantidade e potência 
nominal dos pontos de utilização – tomadas, iluminação, 
elevadores, bombas, ar-condicionado, etc).
Desenho das plantas: 
• Desenho dos pontos de utilização 
• Localização dos Quadros de Distribuição de Luz (QLs) 
• Localização dos Quadros de Força (QFs) 
• Divisão das cargas em circuitos terminais 
• Desenho das tubulações de circuitos terminais 
• Localização das Caixas de Passagem dos pavimentos e da 
prumada 
• Localização do Quadro Geral de Baixa Tensão (QGBT), Centros 
de Medidores, Caixa Seccionadora, Ramal Alimentador e 
Ponto de Entrega 
• Traçado da fiação dos circuitos alimentadores
Condutores Elétricos: 
• Fio elétrico: seção circular única (Cu, Al), recoberta por 
isolamento termoplástico (vermelho, azul, preto, branco, 
amarelo, verde); 
• Cabo elétrico: várias seções circulares trançadas ; 
Fornecimento em tensão secundária: 
• Tipo A (monofásico): Fornecimento a 2 fios (fase e neutro) 220V 
potência instalada máxima = 15kW. 
• Tipo B (bifásico): Fornecimento a 3 fios (2 fases e neutro) 
380/220V urbana e 440/220V rural potência instalada entre 15 
e 22kW. 
• Tipo C (trifásico): Fornecimento a 4 fios (3 fases e neutro) 
380/220V potência instalada entre 22 e 75kW.
• Em uma instalação elétrica utilize sempre materiais de boa 
qualidade, pois o barato agora pode custar caro no futuro. 
• Em instalações comerciais deve-se analisar o consumo de 
energia que será necessária, onde se ligado motores trifásicos, 
ou se ter uma potencia maior de 75Kw deve ser ligado a uma 
rede trifásica, caso não seja necessário pode ser ligado à uma 
rede bifásica 
• Para determinar a potência total prevista para a instalação 
elétrica, é preciso realizar a previsão de cargas. E isso se faz 
com o levantamento das potências (cargas) de iluminação e de 
tomadas a serem instaladas.
Recomendações da norma NBR 5410 
• Condições para estabelecer a quantidade mínima de 
pontos de luz: 
• Prever pelo menos um ponto de luz no teto, 
comandado por um interruptor de parede; 
• Nas áreas externas, a determinação da quantidade de 
pontos de luz fica a critério do instalador; 
• Em caso de instalação de novos equipamentos 
elétricos, certifique-se de que os cabos e todos os 
componentes do circuito suportem a nova carga, pois 
caso contrario, pode haver um aquecimento excessivo 
dos fios e maior consumo de energia, resultando em 
curtos circuitos e incêndios
• Em escritórios comerciais com área menor que 40m² 
deve ser instalada uma tomada para cada 3m; ou 1 
tomada para cada 4m² 
• Em escritórios comerciais com área maior que 40m² deve 
ser instalado 10 tomadas para os primeiros 40m² e uma 
tomada para cada 10m da área restante.
Circuitos 
• Os circuitos elétricos são formados por uma ou mais fontes de 
energia elétrica, fios condutores, um ou mais elementos de 
circuito e um aparelho capaz de utilizar a energia produzida 
pelo gerador. 
• O circuito se torna completo quando a corrente elétrica, que 
sai de um dos polos da fonte de energia, percorre todos os 
componentes do circuito e fecha seu percurso no outro pólo 
da fonte.
• VIDEO
Estrutura 
• Eletrocalha: Destinada à condução e distribuição de fios e 
cabos, sejam eles de energia, dados, voz ou imagem. Destaca-se 
pela durabilidade maior, por proporcionar a segurança dos 
fios e cabos. Disponível nos modelos liso ou perfurado, é 
fabricada em chapa pré-zincada. Excelente opção para 
ambientes internos.
• Perfilados: São apropriados para a condução de fios e cabos 
em diversas aplicações de instalações elétricas, disponíveis 
com dimensões padrões de 38 x 38 x 600 mm e 38 x 19 x 3000 
mm.
• Eletrodutos: Atuam como condutores e protetores de cabos e 
fios elétricos e de telefonia. Disponíveis nos modelos leve, 
médio, semi-pesado e pesado
• Condulete: São caixas fabricadas em alumínio ou PVC 
desenvolvidas para aplicações em instalações elétricas 
aparentes de baixa tensão.
Conclusão 
• O objetivo da nossa apresentação era mostrar aos colegas um 
pouco sobre a norma NBR 5410, como aplicar e instalar um 
sistema elétrico, falar sobre as estruturas, materiais usados, e 
o funcionamento de um circuito elétrico .

Instalações elétricas comerciais

  • 1.
    Instalações Comerciais Anderson Gabriela Gabriel Mauricio Patrine
  • 2.
    Introdução • Iniciaremosnossa apresentação de Instalações Comerciais falando sobre alguns conceitos de modo geral e depois daremos sequência falando sobre suas aplicações, circuitos e estruturas.
  • 3.
    Conceitos • Umainstalação elétrica é definida pelo conjunto de materiais e componentes elétricos essenciais ao funcionamento de um circuito ou sistema elétrico. • Em um projeto elétrico, as plantas e os detalhes representam a instalação elétrica, enquanto os circuítos elétricos envolventes representam o sistema elétrico. • As instalações elétricas são projetadas de acordo com normas e regulamentos definidos, principalmente, pela, ABNT, que visa observar determinados aspectos, como, Segurança, Eficiência e Qualidade Energética. • As instalações são regulamentadas pela norma NBR-5410, que apresenta um conjunto de regras e prescrições que permitem ao profissional e ao contratante, fazer uma inspeção na instalação, seja ela uma reforma, construção ou ate uma simples manutenção.
  • 4.
    • Uma instalaçãoelétrica lida com a transferência da energia que vem de uma fonte, como um gerador ou uma usina hidrelétrica, lida com a localização dos pontos de utilização da energia elétrica, como uma tomada, ou um interruptor, lida com os comandos, trajeto dos condutores, divisão em circuitos, dispositivos de manobra, carga de cada circuito, carga total. • As instalações comerciais necessitam de uma instalação elétrica que forneça mais energia, com implemento de uma rede trifásica. • Para fazer a instalação comercial é necessário um conjunto de disjuntores, fusíveis, cabos elétricos, eletrodutos, eletrocalhas, conduletes, perfilados, entre outros.
  • 5.
    Aplicações • Emum projeto de uma instalação elétrica edificada, é preciso: • Localizar, determinar e quantificar os pontos de utilização de energia elétrica; • Dimensionar e definir o caminho dos condutores e condutos; • Dimensionar, definir o tipo e a localização dos dispositivos de proteção, de comando, de medição de energia elétrica e outros acessórios;
  • 6.
    Partes que compõeum projeto elétrico: • Plantas; • Esquemas (uni filares e outros que se façam necessários); • Detalhes de montagem, quando necessários; • Memorial descritivo; • Memória de cálculo (dimensionamento de condutores, condutos e proteções); • ART : é um registro que todo profissional precisa para construir seu Acervo Técnico. Fundamental para as realizações dos projetos e também para a carreira.
  • 7.
    • Critérios paraa elaboração de projetos : • Acessibilidade; • Flexibilidade (para pequenas alterações) e reserva de carga (para acréscimos de cargas futuras); • Funcionamento e segurança; Etapas para elaboração de um projeto de instalação elétrica : • Plantas de situação; • Projeto arquitetônico; • Projetos complementares; • Informações obtidas do proprietário; • Quantificação do sistema: • Levantamento da previsão de cargas (quantidade e potência nominal dos pontos de utilização – tomadas, iluminação, elevadores, bombas, ar-condicionado, etc).
  • 8.
    Desenho das plantas: • Desenho dos pontos de utilização • Localização dos Quadros de Distribuição de Luz (QLs) • Localização dos Quadros de Força (QFs) • Divisão das cargas em circuitos terminais • Desenho das tubulações de circuitos terminais • Localização das Caixas de Passagem dos pavimentos e da prumada • Localização do Quadro Geral de Baixa Tensão (QGBT), Centros de Medidores, Caixa Seccionadora, Ramal Alimentador e Ponto de Entrega • Traçado da fiação dos circuitos alimentadores
  • 10.
    Condutores Elétricos: •Fio elétrico: seção circular única (Cu, Al), recoberta por isolamento termoplástico (vermelho, azul, preto, branco, amarelo, verde); • Cabo elétrico: várias seções circulares trançadas ; Fornecimento em tensão secundária: • Tipo A (monofásico): Fornecimento a 2 fios (fase e neutro) 220V potência instalada máxima = 15kW. • Tipo B (bifásico): Fornecimento a 3 fios (2 fases e neutro) 380/220V urbana e 440/220V rural potência instalada entre 15 e 22kW. • Tipo C (trifásico): Fornecimento a 4 fios (3 fases e neutro) 380/220V potência instalada entre 22 e 75kW.
  • 11.
    • Em umainstalação elétrica utilize sempre materiais de boa qualidade, pois o barato agora pode custar caro no futuro. • Em instalações comerciais deve-se analisar o consumo de energia que será necessária, onde se ligado motores trifásicos, ou se ter uma potencia maior de 75Kw deve ser ligado a uma rede trifásica, caso não seja necessário pode ser ligado à uma rede bifásica • Para determinar a potência total prevista para a instalação elétrica, é preciso realizar a previsão de cargas. E isso se faz com o levantamento das potências (cargas) de iluminação e de tomadas a serem instaladas.
  • 12.
    Recomendações da normaNBR 5410 • Condições para estabelecer a quantidade mínima de pontos de luz: • Prever pelo menos um ponto de luz no teto, comandado por um interruptor de parede; • Nas áreas externas, a determinação da quantidade de pontos de luz fica a critério do instalador; • Em caso de instalação de novos equipamentos elétricos, certifique-se de que os cabos e todos os componentes do circuito suportem a nova carga, pois caso contrario, pode haver um aquecimento excessivo dos fios e maior consumo de energia, resultando em curtos circuitos e incêndios
  • 13.
    • Em escritórioscomerciais com área menor que 40m² deve ser instalada uma tomada para cada 3m; ou 1 tomada para cada 4m² • Em escritórios comerciais com área maior que 40m² deve ser instalado 10 tomadas para os primeiros 40m² e uma tomada para cada 10m da área restante.
  • 17.
    Circuitos • Oscircuitos elétricos são formados por uma ou mais fontes de energia elétrica, fios condutores, um ou mais elementos de circuito e um aparelho capaz de utilizar a energia produzida pelo gerador. • O circuito se torna completo quando a corrente elétrica, que sai de um dos polos da fonte de energia, percorre todos os componentes do circuito e fecha seu percurso no outro pólo da fonte.
  • 18.
  • 19.
    Estrutura • Eletrocalha:Destinada à condução e distribuição de fios e cabos, sejam eles de energia, dados, voz ou imagem. Destaca-se pela durabilidade maior, por proporcionar a segurança dos fios e cabos. Disponível nos modelos liso ou perfurado, é fabricada em chapa pré-zincada. Excelente opção para ambientes internos.
  • 21.
    • Perfilados: Sãoapropriados para a condução de fios e cabos em diversas aplicações de instalações elétricas, disponíveis com dimensões padrões de 38 x 38 x 600 mm e 38 x 19 x 3000 mm.
  • 22.
    • Eletrodutos: Atuamcomo condutores e protetores de cabos e fios elétricos e de telefonia. Disponíveis nos modelos leve, médio, semi-pesado e pesado
  • 23.
    • Condulete: Sãocaixas fabricadas em alumínio ou PVC desenvolvidas para aplicações em instalações elétricas aparentes de baixa tensão.
  • 24.
    Conclusão • Oobjetivo da nossa apresentação era mostrar aos colegas um pouco sobre a norma NBR 5410, como aplicar e instalar um sistema elétrico, falar sobre as estruturas, materiais usados, e o funcionamento de um circuito elétrico .