COLETÂNEA DO
USO DO AÇO
3ª Edição
(Revisada e Ampliada)
2004
Volume
1
INTERFACE ENTRE PERFIS
ESTRUTURAIS LAMINADOS E
SISTEMAS COMPLEMENTARES
Roberto de Araujo Coelho
1
Coordenação:
Djaniro Álvaro de Souza
Colaboração:
Christiane Mirian Haddad
Fernando Ottoboni Pinho
Rosângela C. Bastos Martins
APRESENTAÇÃO
A construção industrializada oferece vantagens extraordinárias, desde a racionalização do
processo construtivo até a conseqüente redução de custos e desperdícios. E quando se trata de
racionalização do processo construtivo, é obrigatório considerar o uso de estruturas metálicas
como alternativa. Utilizada largamente no segmento industrial brasileiro, a construção em aço
ainda tem uma participação tímida no que se refere principalmente a edifícios de andares
múltiplos. Há que destacar, entretanto, que nos últimos anos a construção em aço tem crescido
exponencialmente, seguindo a inexorável tendência ao uso de processos industrializados e alta
tecnologia. Trata-se de um desafio extraordinário, considerando-se que na costrução civil
brasileira predomina a construção convencional e os métodos artesanais. Os Perfis Gerdau
Açominas, laminados, cuja fabricação foi iniciada em 2002, representam um reforço em termos
de produtos classe mundial, para ajudar o segmento da construção em aço a aumentar sua
competitividade.
É essencial na construção industrializada, dedicar-se mais tempo ao projeto e ao planejamento,
em benefício de maior rapidez na execução da obra. A escolha dos elementos construtivos e a
sua melhor combinação são fatores preponderantes para a racionalização da construção e a
redução de prazos e custos. Nesse contexto, referindo-nos à construção em aço, a interface
entre as vedações (paredes e lajes) e a estrutura requerem atenção especial, visando aumentar
a velocidade da construção e prevenindo eventuais patologias.
Quando lançamos a primeira edição deste manual, não tínhamos idéia da extraordinária
demanda por parte dos profissionais do segmento para esse tipo de publicação. A 2ª edição
também foi esgotada rapidamente, tornando-se um dos mais procurados manuais da
Coletânea do Uso do Aço, editados pela Gerdau Açominas.
Nesta 3ª edição, que publicamos com renovada satisfação, foram incluídas novas interfaces,
abrangendo outros tipos de edificações e ampliando assim a sua utilização como material
técnico de referência e consulta.
COLETÂNEA DO USO DO AÇO
ÍNDICE
1 Introdução..................................................................................................................7
2 Interfaces Usuais em Edifícios......................................................................................11
Vedações ................................................................................................................13
Painéis Pré-Moldados ..........................................................................................14
Placas, Pele de Vidro............................................................................................23
Parede Cortina....................................................................................................28
Paredes Moldadas “in Loco”..................................................................................30
Alvenaria Desvinculada .................................................................................30
Alvenaria Vinculada ......................................................................................42
Lajes ......................................................................................................................45
Laje Maciça Convencional ....................................................................................46
Laje Pré-Moldada Alveolar....................................................................................47
Laje Mista com Fôrma de Aço Incorporada .............................................................48
Laje Treliçada .....................................................................................................49
3 Interfaces Usuais em Galpões ......................................................................................51
Vedações ................................................................................................................53
Painel Pré-Moldado Alveolar.................................................................................55
Painel Metálico e Parede.......................................................................................56
Parede Moldada “in Loco”.....................................................................................59
4 Notas Gerais..............................................................................................................61
Recomendações ......................................................................................................63
Referências Bibliográficas .........................................................................................63
5
COLETÂNEA DO USO DO AÇO
INTRODUÇÃO
1
Neste manual são apresentadas diversas soluções possíveis para as interfaces entre os Perfis
Gerdau Açominas e demais sistemas complementares estruturais e de vedação que contribuem
para o funcionamento de uma edificação como um todo.
As vedações verticais fazem parte do sistema responsável pela forma do edifício. Nelas estão
inseridas as janelas, as portas, as instalações, e também fixados os revestimentos. Sua
geometria é fruto da criatividade e experiência do arquiteto. As dimensões e formas definirão as
opções de escolha do sistema a ser adotado, seja painel, placa, pele de vidro ou alvenaria
convencional. Como representam quase a totalidade da superfície vertical do edifício, devem
ser tratadas com a devida atenção e responsabilidade.
As vedações horizontais, compostas pelas lajes, são elementos estruturais que, unidos à
estrutura, garantem a sua sustentação. São responsáveis pela transferência das cargas
verticais às vigas e, das horizontais, às colunas. O tipo de laje determina não só o desempenho
da estrutura, como todo o desenvolvimento da obra quanto à produtividade, velocidade,
precisão e segurança. A seção transversal e sua deformabilidade vertical definem as fixações
das vedações verticais, principalmente as internas.
Independente do grau de industrialização do processo construtivo adotado, a estrutura deverá
estar em harmonia com os demais elementos que compõem a edificação. A escolha do tipo de
vedação a ser projetada necessita ser cuidadosamente avaliada e precedida do estudo das
características de cada sistema ou processo e de uma verificação da disponibilidade no
mercado.
Os detalhes sugeridos neste manual são meramente ilustrativos, devendo ser consultados os
fornecedores quanto às especificações de cada sistema. Não devem, portanto, ser utilizados
diretamente nos projetos e obras sem um prévio estudo e dimensionamento.
INTRODUÇÃO
9
COLETÂNEA DO USO DO AÇO
INTERFACES USUAIS
EM EDIFÍCIOS
2
INTERFACES USUAIS EM EDIFÍCIOS
VEDAÇÕES
13
COLETÂNEA DO USO DO AÇO
14
COLETÂNEA DO USO DO AÇO
PAINÉIS PRÉ-MOLDADOS
São paredes inteiras, industrializadas, posicionadas externamente à estrutura. Quando fixados
diretamente nos pilares, reduzem significativamente o peso das vigas externas, pois não
transferem cargas para as mesmas.
É o sistema com maior grau de industrialização no processo construtivo e, quando necessário,
podem substituir os contraventamentos metálicos externos, bastando que sejam corretamente
projetados para tal situação.
DET 01A
DET 03
DET 04
DET 02
DET 01D
DET 01C
DET 05A
DET 01B
DET 05B
15
COLETÂNEA DO USO DO AÇO
DET 01 APAINÉIS PRÉ-MOLDADOS
Painel
Perfil de
Arremate
Painel Pré-Moldado
ELEVAÇÃO
ISOMÉTRICO
DET A
DET A
PLANTA
Isolamento
Térmico
Tolerância
Vedação
Anti-Chama
Apoio
Fixação
Tolerância
Apoio Móvel
(superior)
Fixação Gravidade
(inferior)
Apoio Fixação
Espaçador
Divisória
("dry-wall")
Fixação Gravidade
Laje
Selante
Painel
Painel
Vedação
Anti-Chama
Laje
DET A
Estrutura não aparente.
Painel pré-moldado de vedação.
Alinhamento por fora da estrutura.
PERFIL H
PERFIL I
PERFIL I
PERFIL H
PERFIL H
DET 01 B PAINÉIS PRÉ-MOLDADOS
16
COLETÂNEA DO USO DO AÇO
Estrutura não aparente.
Painel pré-moldado de vedação.
Alinhamento por fora da estrutura.
Detalhe de arremate com a cobertura impermeabilizada.
Pingadeira
Tolerância
Vedação
Anti-Chama Tolerância
Vedação
Anti-Chama
Perfil de
Arremate
ELEVAÇÃO
Painel Interno
ISOMÉTRICO
DET A
PLANTA
Apoio Fixação
Fixação Gravidade
(inferior)
Apoio móvel
Fixação Gravidade
(inferior)
Apoio Fixação
DET A
Apoio Móvel
(superior)
Piso
Impermeabilizado
Painel Interno
Laje
DET A DET A
Painel interno
Painel Pré-Moldado
DET A
Painel externo
Painel externo
PERFIL I
PERFIL H
PERFIL H
PERFIL I
PERFIL H
Borracha
Vedação
Painel
Selante
Painel
DET 01 CPAINÉIS PRÉ-MOLDADOS
17
COLETÂNEA DO USO DO AÇO
Estrutura não aparente.
Painel pré-moldado de vedação.
Alinhamento por fora da estrutura.
Detalhe de arremate com forro do pilotis.
Forro
Laje
Laje
Borracha
Vedação
Vedação
Anti-Chama
Isolamento
Térmico
Tolerância
Painel
Selante
Painel
Vedação
Anti-Chama
Divisória
("dry-wall")
Junta tratada com selante
Estabilizador
Perfil de
Arremate
ELEVAÇÃO
DET A
PLANTA
Apoio Fixação
Fixação Gravidade
(inferior)
ISOMÉTRICO
DET A
Painel
Fixação
Gravidade
Painel Pré-Moldado
Apoio Fixação
PERFIL H
PERFIL I
PERFIL H
PERFIL H
PERFIL I
DET 01 D PAINÉIS PRÉ-MOLDADOS
18
COLETÂNEA DO USO DO AÇO
Estrutura não aparente.
Painel pré-moldado de vedação.
Alinhamento por fora da estrutura.
Detalhe de arremate com piso impermeabilizado.
Laje
Borracha
Vedação
Piso
Selante
Painel
Laje
Piso Interno
Piso
Impermeabilizado
Piso
Impermeabilizado
Laje
Piso Interno
Fixação Gravidade
(Inferior)
DET AApoio Fixação
ELEVAÇÃO
Painel
ISOMÉTRICO
ALTERNATIVA
Painel
DET A
Fixação Gravidade
(Inferior)
Apoio Fixação
DET A
Painel Pré-Moldado
PERFIL H
PERFIL I
PERFIL H PERFIL H
PERFIL I PERFIL I
DET 02PAINÉIS PRÉ-MOLDADOS
Estrutura não aparente.
Painel pré-moldado de vedação.
Alinhamento por fora da estrutura.
Painel
ISOMÉTRICO
Laje
Painel
ELEVAÇÃO
Vedação
Anti-Chama
Tolerância
Apoio Móvel
(superior)
Fixação Gravidade
Fixação Gravidade
(inferior)
Apoio FixaçãoLaje
DET A
DET A
Espaçador Selante
Painel
Painel
PLANTA
Isolamento
Térmico
Tolerância
Divisória
("dry-wall")
Vedação
Anti-Chama
DET A
Arremate
Perfil de
19
COLETÂNEA DO USO DO AÇO
PERFIL H
PERFIL I
PERFIL H
PERFIL H
PERFIL I
DET 03
20
COLETÂNEA DO USO DO AÇO
Estrutura não aparente.
Painel extrusado de vedação.
Alinhamento por fora da estrutura.
DET A
Espaçador Selante
Painel
Painel
Painel Extrusado
ISOMÉTRICO
Laje
PLANTA
Isolamento
Térmico
Tolerância
Fixação
Divisória
("dry-wall")
Vedação
Anti-Chama
DET A
Vedação
Anti-Chama
Fixação
Fixação
Painel
Extrusado
Laje
Perfil de
Arremate
DET A
DET A
ELEVAÇÃO
PAINÉIS PRÉ-MOLDADOS
PERFIL H
PERFIL I
PERFIL H
PERFIL I
PERFIL H
DET 04
21
COLETÂNEA DO USO DO AÇO
Estrutura aparente.
Painel de Concreto Celular Autoclavado (CCA).
Alinhamento pela face externa da coluna.
Perfil "U"
Placa EPS
Painel CCA
DET A
Perfil "U"
ELEVAÇÃO
Painel CCA
ISOMÉTRICO
DET B
DET A
Placa EPS
Cantoneira
Perfil "U"
Placa EPS
DET B
DET B
PLANTA
Painel CCA
Painel CCA
Perfil de Arremate
Revestimento
Externo
Revestimento
Interno
Laje
Laje
Revestimento
Selante
Revestimento
Selante
Perfil "U"
Painel
Painel
Espaçador
Revestimento
Externo
Revestimento
Interno
Argamassa
Adesiva
Junta
Movimento
PAINÉIS PRÉ-MOLDADOS
PERFIL H
PERFIL I
PERFIL H
PERFIL H
PERFIL I
PERFIL H
DET 05 A
DET 05 B
22
COLETÂNEA DO USO DO AÇO
PAINÉIS PRÉ-MOLDADOS
Painel extrusado de vedação.
Detalhe de arremate com a cobertura impermeabilizada.
Painel de Concreto Celular Autoclavado.
Detalhe de arremate com a cobertura.
Fixação
Vedação
Anti-Chama
Piso
Impermeabilizado
Pingadeira Pingadeira
Borracha
Vedação
Selante
Painel
Painel
Selante
Borracha
Vedação
Painel
Placa de
arremate
Painel
Extrusado
DET A
DET A
Painel Interno
DET A
DET B
DET B
Placa de arremate
ELEVAÇÃO
DET B
Laje
Placa EPS
Perfil de arremate
Revestimento
Externo
Placa EPS
Revestimento
Interno
Painel CCA
Cantoneira /
Perfil "U"
Revestimento
Selante
Perfil "U"
DET A
Painel CCA
DET A
Perfil "U"
ELEVAÇÃO
DET A
PERFIL I
PERFIL H
PERFIL H
PERFIL I
23
COLETÂNEA DO USO DO AÇO
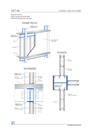
PLACAS / PELE DE VIDRO
São elementos de vedação (externos ou internos) industrializados, que necessitam de uma
estrutura auxiliar para fixação, geralmente composta por perfis de alumínio ou de chapa
galvanizada dobrada, denominada “steel frame”. O “dry wall” é o sistema interno mais comum.
As placas internas são geralmente de gesso acartonado e as externas em vidro ou material
cimentício, resistente à umidade. Neste último caso, necessitam de isolamento térmico
adicional (manta de lã de rocha ou vidro) aplicado no vazio interno, entre as placas, onde as
instalações são também facilmente posicionadas.
DET 06
DET 08, 09
DET 07
DET 06 PLACAS / PELE DE VIDRO
24
COLETÂNEA DO USO DO AÇO
Divisória interna.
Placas de gesso acartonado.
Alinhamento pela face da viga.
PLANTA
ISOMÉTRICO
Placa de
Gesso Acartonado
ELEVAÇÃO
Montante
(ch. galv.)
Montante
(ch. galv.)
Guia
(ch. galv.)
Guia
(ch. galv.)
Montante
(ch. galv.)
Placa de
Gesso Acartonado
Guia
Montante
Placa de Gesso
Acartonado
Placa de
Gesso Acartonado
Guia
(ch. galv.)
Guia
Montante
(ch. galv.)
Laje
Laje
Isolante
Térmico
Isolamento
Térmico
PERFIL I
PERFIL H
PERFIL H
PERFIL I
PERFIL H
DET 07
25
COLETÂNEA DO USO DO AÇO
Estrutura não aparente.
Placas de vedação.
Alinhamento pela face externa da coluna.
ISOMÉTRICO
DET A
PLANTA
DET A
Placa Cimentícia
(externo)
Montante
(ch. galv.)
ELEVAÇÃO
Placa Cimentícia
(externo)
Montante
(ch. galv.)
Montante
(ch. galv.)
Apoio Auxiliar
Guia
(ch. galv.)
Guia
(ch. galv.)
Placa Cimentícia
DET A Painel
Painel
Selante
Laje
Placa Gesso
(interno)
Laje
Isolante
Térmico
Perfil de
Arremate
Isolamento
Térmico
Placa Gesso
(interno)
PLACAS / PELE DE VIDRO
PERFIL H
PERFIL I
PERFIL H
PERFIL H
PERFIL I
PERFIL H
DET 08
26
COLETÂNEA DO USO DO AÇO
Estrutura não aparente.
Placas de vedação.
Alinhamento por fora da estrutura.
ISOMÉTRICO
DET A
Montante
Granito/
Mármore/
Placa Metálica
Selante
Granito/
Mármore/
Placa Metálica
ELEVAÇÃO
Laje
Montante
(galv. / al.)
Junta Movimento
DET A
Suporte
Granito/
Mármore/
Placa Metálica
DET A
Suporte
Montante
Granito/
Mármore/
Placa Metálica
PLANTA
Placa Gesso
(interno)
Isolante
Térmico
Isolamento
Térmico
Perfil de Arremate
Placa Gesso
(interno)
Laje
PLACAS / PELE DE VIDRO
PERFIL H
PERFIL I
PERFIL H
PERFIL H
PERFIL I
DET 09
27
COLETÂNEA DO USO DO AÇO
PLACAS / PELE DE VIDRO
Estrutura não aparente.
"Pele" de vidro.
Alinhamento por fora da estrutura.
Vidro
Laje
Laje
Selante
Vidro
Vidro
Selante
Rodapé
Forro
Vidro
Vidro
Montante
Junta
Rodapé
Rodapé
Perfil de
Arremate
Suporte
Arremate
Montante
ELEVAÇÃO
ISOMÉTRICO
Montante
DET A
DET A
Arremate
PLANTA
Vidro
PERFIL H
PERFIL I
PERFIL H
PERFIL H
PERFIL I
28
COLETÂNEA DO USO DO AÇO
PAREDE CORTINA
São paredes executadas externamente à estrutura, apoiadas diretamente nas fundações ou em
vigas de transição. A estabilização horizontal se dá por meio de conectores fixados à estrutura
no nível das lajes ou vigas. Funciona como uma “pele” e é ideal para obras industriais, com
grandes alturas.
DET 10
DET 10PAREDE CORTINA
29
COLETÂNEA DO USO DO AÇO
Estrutura não aparente.
Parede cortina.
Alinhamento por fora da estrutura.
ISOMÉTRICO
ELEVAÇÃO
DET A
DET A
Conector
(cisalhamento)
PLANTA
Placa EPS
Cintamento
Alvenaria
Alvenaria
Placa EPS
Conector
(cisalhamento)
Cintamento
Laje
Placa EPS
Alvenaria
Revestimento
Revestimento
Selante
Junta
Movimento
Alvenaria
Revestimento
Externo
Revestimento
Interno
Laje
Revestimento
Externo
Revestimento
Interno
Espaçador
PERFIL H
PERFIL I
PERFIL H
PERFIL H
PERFIL I
30
COLETÂNEA DO USO DO AÇO
PAREDES MOLDADAS "IN LOCO"
Alvenaria Desvinculada
São paredes fixadas à estrutura por meio de sistemas que permitem pequenas movimentações
diferenciais segundo seu plano. São empregadas em obras com grandes vãos, acima de
5 ou 6 m, geralmente comerciais e industriais.
Utilizam-se duas cantoneiras paralelas ou um perfil “U”, gerando um sistema de encaixe da
alvenaria que impede apenas movimentos transversais ao seu plano. Na junção entre a parede
e o sistema de fixação formam-se juntas de movimento, incorporadas ao acabamento final.
É um sistema com alto grau de confiabilidade que reduz significativamente o nível de
patologias.
DET 12
DET 13B
DET 13
DET 13A
DET 11
DET 15
DET 14
DET 11A, 11B
DET 13C, 13D
DET 12A
DET 11PAREDES MOLDADAS "IN LOCO"
31
COLETÂNEA DO USO DO AÇO
Estrutura aparente.
Alvenaria desvinculada externa/interna.
Alinhamento pelo eixo da coluna.
DET A
PLANTA
ELEVAÇÃO
Perfil "U"
Alvenaria
Placa EPS
ISOMÉTRICO
Cantoneira
Perfil "U"
(Alvenaria)
DET A
Alvenaria
Alvenaria
Perfil "U"
Placa EPS
(Alvenaria)
Placa EPS
Perfil "U"
Junta
Movimento
DET A
Junta
Movimento
Placa EPS
Perfil "U"
Alvenaria
DET A
Cantoneira
Revestimento
Interno
Revestimento
Externo
Laje
Revestimento
Externo
DET B
Alvenaria
Revestimento
Interno
Revestimento
Externo
Cantoneira /
Perfil "U"
Selante
Revestimento
Revestimento
Laje
Pingadeira
DET B
PERFIL H
PERFIL H
PERFIL I
PERFIL H
PERFIL I
DET 11 A PAREDES MOLDADAS "IN LOCO"
32
COLETÂNEA DO USO DO AÇO
Estrutura aparente.
Platibanda com laje impermeabilizada.
Alinhamento pelo eixo da coluna.
ISOMÉTRICO
Laje
Revestimento
Externo
Peitoril
Alvenaria
Placa EPS
Revestimento
Interno
Selante
Revestimento
Externo
Cantoneira /
Perfil "U"
Selante
Revestimento
Selante
Rebaixo p/ a
Impermeabilização
Peitoril
Selante
Selante
Projeção
Peitoril
Revestimento
Laje
Pingadeira
DET A
PLANTA
ELEVAÇÃO
Cantoneira
DET A
(Alvenaria)
Cantoneira
DET A
Alvenaria
DET A
Cantoneira
Alvenaria
DET B
DET B
PERFIL H
PERFIL H
PERFIL I
PERFIL H
PERFIL I
DET 11 BPAREDES MOLDADAS "IN LOCO"
33
COLETÂNEA DO USO DO AÇO
Estrutura aparente.
Cobertura com telhado.
Alinhamento pelo eixo da coluna.
Revestimento
Externo
Laje
Telhado
Rufo
Metálico
Rufo metálico
Revestimento
Externo
Cintamento
Telhado
Projeção do
rufo metálico
Telhado
Cintamento
Cintamento
Revestimento
Laje
Pingadeira
(Alvenaria)
Cantoneira
DET A
Cantoneira
ELEVAÇÃO
Alvenaria
ISOMÉTRICO
DET A
Perfil "U"
PLANTA
DET A
Perfil "U"
DET B
DET B
Placa EPS
Alvenaria
Cantoneira /
Perfil "U"
Revestimento
Selante
PERFIL H PERFILH
PERFIL I
PERFIL H
PERFIL I
DET 12 PAREDES MOLDADAS "IN LOCO"
34
COLETÂNEA DO USO DO AÇO
DET A
Alvenaria
Fixação
Placa EPS
DET A
Placa EPS
Barra de
Fixação
Junta
Movimento
PLANTA
ISOMÉTRICO
Ver DET A
Alvenaria
Placa EPS Selante
Alvenaria
Espaçador
Revestimento
Externo
Laje
Revestimento
Externo
Revestimento
Externo
ELEVAÇÃO
Alvenaria
Malha de
Reforço
Barra de Fixação
DET A
Barra de
Fixação
Placa EPS
Perfil de Arremate
Revestimento
Externo
Laje
Revestimento
Interno
Estrutura não aparente.
Alvenaria desvinculada externa.
Alinhamento por fora da estrutura.
PERFIL H
PERFIL H
PERFIL I
DET 12 APAREDES MOLDADAS "IN LOCO"
35
COLETÂNEA DO USO DO AÇO
Estrutura não aparente.
Alvenaria desvinculada externa.
Alinhamento por fora da estrutura.
Detalhe de arremate nos pilotis.
Placa EPS
Barra de fixação
Revestimento
Externo
Espaçador
Alvenaria
Placa EPS
Alvenaria
Laje
Revestimento
Externo
Revestimento
Externo
Selante
Placa EPS
Junta
Movimento
Fixação
Barra de
fixação
Pingadeira
Alvenaria
ELEVAÇÃO
ISOMÉTRICO
Alvenaria
DET A
DET A
PLANTA
Laje
PERFIL H
PERFIL H
PERFIL H
PERFIL I
DET 13 PAREDES MOLDADAS "IN LOCO"
36
COLETÂNEA DO USO DO AÇO
Estrutura não aparente.
Alvenaria desvinculada externa/interna.
Alinhamento por fora da estrutura.
DET A
ISOMÉTRICO
ELEVAÇÃO
Barra
de Fixação
Placa EPS
Barra de Fixação
DET A
Malha de Reforço
Alvenaria
DET A
Placa EPS
Barra de
Fixação
Junta
Movimento
PLANTA
Alvenaria
Placa EPS
Barra
de fixação
Revestimento
Externo
Perfil de Arremate
Laje
Alvenaria
Placa EPS Selante
Alvenaria
Espaçador
Revestimento
Externo
Revestimento
Interno
Revestimento
Externo
Revestimento
Externo
PERFIL H
PERFIL H
PERFIL I
DET 13 A
DET 13 B
PAREDES MOLDADAS "IN LOCO"
37
COLETÂNEA DO USO DO AÇO
Estrutura não aparente.
Alvenaria desvinculada externa/interna.
Alinhamento por fora da estrutura.
Estrutura não aparente.
Alvenaria desvinculada externa/interna.
Alinhamento por fora da estrutura.
Alvenaria
ISOMÉTRICO
PLANTA
Placa EPS
Junta
Movimento
Junta
Movimento
Revestimento
Interno
Revestimento
Externo
ISOMÉTRICO
Placa EPS
Alvenaria
PLANTA
Junta
Movimento
Barra de
Fixação
Junta
Movimento
Revestimento
Externo
Revestimento
Interno
PERFIL H
PERFIL H
PERFIL H
PERFIL H
DET 13 C PAREDES MOLDADAS "IN LOCO"
38
COLETÂNEA DO USO DO AÇO
Estrutura aparente.
Platibanda em alvenaria com laje impermeabilizada.
Alinhamento por fora da estrutura.
Cintamento
Laje
Placa EPS
Espaçador
Revestimento
Externo
Revestimento
Externo
Alvenaria
Placa EPS
Alvenaria
Placa EPS
Revestimento
Externo
Revestimento
Externo
Selante
Selante
Placa EPS
Selante
Peitoril
Rebaixo p/ a
Impermeabilização
Revestimento
Externo
Selante
Peitoril
Projeção
Peitoril
Cintamento
Cintamento
Alvenaria
ISOMÉTRICO
DET A
Barra
de fixação
Perfil de arremate
DET A
Malha de reforço
Barra de fixação
(cfe. Det 13)
Alvenaria
PLANTA
DET A
ELEVAÇÃO
PERFIL I
PERFIL H
PERFIL H
DET 13 DPAREDES MOLDADAS "IN LOCO"
39
COLETÂNEA DO USO DO AÇO
Estrutura não aparente.
Cobertura com telhado.
Alinhamento por fora da estrutura.
Placa EPS
Telhado
Rufo metálico
Cintamento
Laje
Revestimento externo
Espaçador
Revestimento
Externo
Revestimento
Externo
Revestimento
Externo
Alvenaria
Alvenaria
Placa EPS
Selante
Cintamento
Placa EPS
Telhado
Rufo
Metálico
Telhado Projeção do
rufo metálicoCintamento
Barra
de fixação
DET A
Malha de reforço
Perfil de arremate
DET A
Barra de fixação
ISOMÉTRICO
ELEVAÇÃO
DET A
PLANTA
Alvenaria
PERFIL H
PERFIL H
PERFIL H
PERFIL I
DET 14 PAREDES MOLDADAS "IN LOCO"
40
COLETÂNEA DO USO DO AÇO
Estrutura não aparente.
Alvenaria dupla externa p/ região contraventamento.
Alinhamento pelo eixo da viga.
ISOMÉTRICO
DET A
ELEVAÇÃO
Parede Dupla
Fiada de Travamento
Placa EPS
Cantoneira
Perfil "U"
(Alvenaria)
DET A
Alvenaria
Junta
Movimento
DET B
(Alvenaria)
DET B
PLANTA
Perfil "U"
Placa EPS
Junta
Movimento
Alvenaria
Placa EPS
DET B
Alvenaria
Dupla
Cantoneiras
Placa EPS Cantoneira
Parede
Dupla
Parede
Simples
Malha de Reforço
Placa Cimentícia
Pino Fixação
Revestimento
Externo
Laje
Perfil de Arremate
Contraventamento
Revestimento
Interno
Cantoneira
Alvenaria
Espaçador
Placa cimentícia
Revestimento
Revestimento
Selante
Espaçador
Alvenaria
Revestimento
Selante
Revestimento
Pino Fixação
Revestimento
do Pilar
Revestimento
Externo
Contraventamento
Pino Fixação
Revestimento
Interno
Contraventamento
PERFIL I
PERFIL H
PERFIL H
PERFIL H
DET 15PAREDES MOLDADAS "IN LOCO"
41
COLETÂNEA DO USO DO AÇO
Estrutura revestida.
Alvenaria desvinculada externa.
Alinhamento pela face externa da coluna.
DET A
PLANTA
ELEVAÇÃO
Perfil "U"
Alvenaria
Placa EPS
ISOMÉTRICO
Cantoneira
Perfil "U"
(Alvenaria) Malha de Reforço
Placa Cimentícia
DET A
Pino Fixação
Alvenaria
Perfil "U"
Placa EPS
Junta
Movimento
Cantoneira
Junta
Movimento
Alvenaria
Alvenaria
Cantoneira
Placa EPS
DET B
Pino Fixação
Placa EPS
Pino Fixação
Revestimento
do Pilar
DET B
(Alvenaria)
DET B
Revestimento
Interno
Revestimento
Externo
Laje
Perfil de Arremate
Cantoneira
Alvenaria
Espaçador
Revestimento
Interno
Placa Cimentícia
Selante
Revestimento
Externo
Espaçador
Alvenaria
Selante
Revestimento
Externo
Revestimento
Externo
Revestimento
Externo
Revestimento
Externo
PERFIL H
PERFIL H
PERFIL H
PERFIL I
PERFIL H
42
COLETÂNEA DO USO DO AÇO
PAREDES MOLDADAS "IN LOCO"
Alvenaria Vinculada
São paredes unidas solidariamente à estrutura, trabalhando em conjunto, sendo mais utilizadas
em edifícios com pequenos vãos (até 5 m aproximadamente), e destinados ao uso residencial
ou salas comerciais, onde o emprego de juntas não é esteticamente ideal.
Nas ligações alvenaria-estrutura são empregadas barras de aço tipo estribo, denominadas
ferro-cabelo, soldadas à estrutura. Preferencialmente, devem ser empregados segmentos de
telas eletrossoldadas.
Esse tipo de parede trabalha em conjunto com a estrutura, aumentando sua rigidez. Em
situações especiais, podem ser eliminados os elementos de contraventamento metálico,
transferindo os esforços para as paredes. Neste caso, devem ser consideradas como elementos
estruturais e devidamente dimensionadas conforme a "Teoria das Diagonais Equivalentes", por
exemplo.
DET 16
DET 16A
DET 16B
DET 16PAREDES MOLDADAS "IN LOCO"
43
COLETÂNEA DO USO DO AÇO
Estrutura aparente.
Alvenaria vinculada externa/interna.
Alinhamento pelo eixo da coluna.
ISOMÉTRICO
Tela
Eletrossoldada
Alvenaria
Tela
Eletrossoldada
Argamassa Fraca
Expansível
ELEVAÇÃO
Alvenaria
Tela
Eletrossoldada Alvenaria
DET A
DET B
DET B
Tela
Eletrossoldada
Tela
Eletrossoldada
DET A
PLANTA
Alvenaria
Revestimento
Externo
DET C
Laje
Revestimento
Externo
Argamassa Fraca
Expansível
Revestimento
Externo
Selante
Argamassa Fraca
Expansível
Revestimento
Externo
Selante
Friso
Revestimento
Interno
Revestimento
Externo
Friso
Revestimento
Laje
Pingadeira
DET C
PERFIL H
PERFIL I
PERFIL H
PERFIL I
PERFIL I
PERFIL H
PERFIL H
DET 16 A
DET 16 B
PAREDES MOLDADAS "IN LOCO"
44
COLETÂNEA DO USO DO AÇO
Variação DET 11.
Fixação em forma de estribo.
Alvenaria
Solda de campo
ISOMÉTRICO
PLANTAFixação
(estribo)
Fixação
(estribo)
Fixação
(estribo)
Alvenaria
Friso
Revestimento
ExternoRevestimento
Interno
Variação DET 11.
Fixação em forma de gancho.
Alvenaria
Solda de campo
ISOMÉTRICO
PLANTA
Fixação
(gancho)
Fixação
(gancho)
Alvenaria
Fixação
(gancho)
Revestimento
Externo
Friso
Revestimento
Interno
PERFIL H
PERFIL H
PERFIL H
PERFIL H
LAJES
45
COLETÂNEA DO USO DO AÇO
INTERFACES USUAIS EM EDIFÍCIOS
DET 17 LAJE CONVENCIONAL
46
COLETÂNEA DO USO DO AÇO
Laje maciça, moldada "in loco".
Perfil de
arremate
DETALHE
Conector
(perfil "U")
ELEVAÇÃO
Laje maciça
Laje de
concreto armado
Conector
(perfil "U" laminado)
Conector
(perfil "U")
Laje
PERFIL H
PERFIL I
PERFIL H
PERFIL I
PERFIL I
DET 18LAJE ALVEOLAR
47
COLETÂNEA DO USO DO AÇO
Laje pré-moldada.
Extrusada, protendida.
Não necessita escoramento.
Laje
DETALHE
Conector
(stud bolt)
Armadura de
Ligação Laje Pré-Moldada
Conector
(stud bolt)
ELEVAÇÃO
Laje Pré-Moldada
Recorte no
Pré-Moldado
Capa de Concreto
Cintamento
Periférico
Capa de Concreto
PERFIL I
PERFIL I
PERFIL H
PERFIL H
PERFIL I
DET 19 LAJE COM FÔRMA DE AÇO INCORPORADA
48
COLETÂNEA DO USO DO AÇO
Laje maciça.
Forma metálica incorporada.
Não necessita escoramento.
ISOMÉTRICO
Laje
ELEVAÇÃO
Conector
(stud bolt)
Forma Metálica
(steel deck)
Laje Concreto
Conector
(stud bolt)
DETALHE
Forma Metálica
(steel deck)
Vazio
Perfil de Arremate
hc>50mm
>15mm
PERFIL H
PERFIL I
PERFIL H
PERFIL I
PERFIL I
PERFIL I
Capa de concreto
Cintamento
periférico
Bloco EPS
Conector
(stud bolt)
ELEVAÇÃO
Laje treliçada
Laje treliçada
DET 20LAJE TRELIÇADA
49
COLETÂNEA DO USO DO AÇO
Laje pré-moldada treliçada.
Necessita escoramento parcial.
Capa de concreto
Laje
DETALHE
Conector
(stud bolt)
Bloco EPS
Laje treliçada
PERFIL I
PERFIL I
PERFIL H
PERFIL H
PERFIL I
INTERFACES USUAIS
EM GALPÕES
3
INTERFACES USUAIS EM GALPÕES
VEDAÇÕES
53
COLETÂNEA DO USO DO AÇO
54
COLETÂNEA DO USO DO AÇO
VEDAÇÕES
As vedações de galpões diferem das convencionais em alguns aspectos importantes:
• Grandes dimensões, tanto no comprimento quanto na altura;
• Bordo superior livre, sem apoio direto na estrutura;
• Estrutura com maior deslocamento horizontal na parte superior;
• Esforços horizontais elevados (vento, impacto).
Para as vedações, devem ser definidos a posição em relação à estrutura, as condições de apoio
em todo o perímetro, o sistema de fixação à estrutura, as juntas de movimentação, as cargas
transversais e verticais, a espessura da parede, e o tipo de material a ser empregado.
Nos locais onde haja a possibilidade de choque de veículos (carregadeiras, empilhadeiras) com
as paredes, deve ser prevista a execução de elementos (bate-rodas) que impeçam esse tipo de
impacto. Caso contrário, os esforços devem ser previstos no dimensionamento das paredes. As
variações dimensionais das vedações, devido à temperatura e umidade, podem provocar
esforços importantes quando as dimensões forem elevadas. Neste caso deve ser avaliada a
necessidade e considerada a utilização de juntas de movimento.
DET 23 DET 22, 22A
DET 24
DET 21
DET 25
DET 21PAINEL PRÉ-MOLDADO ALVEOLAR
55
COLETÂNEA DO USO DO AÇO
Vedação externa em painel pré-moldado.
Alinhamento por fora da estrutura.
Telha Metálica
Rufo
Calha
Argamassa de
Assentamento
Painel pré-moldado
Borracha
Vedação
Selante
Painel
Painel
Neoprene
Fixação
DET A
PLANTA
Painel
DET A
Fixação
ELEVAÇÃO
DET B
DET B
DET B
PERFIL I ou H
PERFIL I ou H
DET 22 PAINEL METÁLICO E PAREDE
56
COLETÂNEA DO USO DO AÇO
Vedação externa.
Alinhamento por fora da estrutura.
Revestimento
Externo
Revestimento
Interno
Placa EPS
Junta Movimento
Revestimento
Externo
Placa EPS
Junta Movimento
Revestimento
Interno
Conector
Telha Metálica
Telha Metálica
Calha
Rufo
Cintamento
de Topo
Cintamento
Intermediário
Revestimento
Revestimento
Selante EPS
Alvenaria
Alvenaria
Revestimento
Selante
Perfil "U"
Alvenaria
Perfil "U"
(duplo)
DET A
ELEVAÇÃO
DET A
Alvenaria
DET B
DET B
ALTERNATIVA
Alvenaria
PLANTA
Alvenaria
Perfil "U"
DET A
PERFIL I ou H
PERFIL I ou H
PERFIL I ou H
DET 22 APAINEL METÁLICO E PAREDE
57
COLETÂNEA DO USO DO AÇO
Vedação externa.
Alinhamento por fora da estrutura.
Revestimento
Externo
Revestimento
Interno
Placa EPS
Junta Movimento
Telha Metálica
Telha Metálica
CalhaRufo
Cintamento
de Topo
Revestimento
Selante
Perfil "U"
Alvenaria
Revestimento
Externo
Revestimento
Interno
Junta Movimento Placa EPS
Perfil "U"
(duplo)
DET A
ELEVAÇÃO
DET A
Alvenaria
PLANTA
Perfil "U"
DET A
Perfil "U"
(duplo)
PLANTA - ALVENARIA
Alvenaria
DET A DET APilarete
(Perfil "U"- duplo)
PERFIL I ou H
PERFIL I ou H
DET 23
58
COLETÂNEA DO USO DO AÇO
Vedação externa.
Alinhamento pela face externa da coluna.
DET A
Alvenaria
Alvenaria
Cantoneira
Selante
Revestimento
ELEVAÇÃO
PLANTA
DET A
Alvenaria
Telha Metálica
Telha Metálica
Cintamento
Intermediário
Cintamento
Intermediário
Calha
Rufo
Cantoneira
Placa EPS
Revestimento
Interno
Revestimento
Externo
DET A
PAINEL METÁLICO E PAREDE
PERFIL I ou H
PERFIL I ou H
PERFIL I ou H
DET 24PAREDES MOLDADAS "IN LOCO"
59
COLETÂNEA DO USO DO AÇO
Vedação externa.
Alinhamento por fora da estrutura.
Cintamento
Intermediário
Cintamento
de Topo
Revestimento
Externo
Revestimento
Interno
Calha
Rufo
Telha Metálica
Junta Movimento
Placa EPS
Cintamento
Intermediário
Revestimento
Selante
Perfil "U"
Alvenaria
Perfil "U"
DET A
Alvenaria
DET A
Perfil "U"
(duplo)
PLANTA
DET A
Alvenaria
ELEVAÇÃO
PERFIL I ou H
PERFIL I ou H
DET 25 PAREDES MOLDADAS "IN LOCO"
60
COLETÂNEA DO USO DO AÇO
Vedação externa em alvenaria.
Alvenaria com enrijecedor.
Cintamento
de Topo
Telha Metálica
Rufo
Terça
Cintamento
Intermediário
Enrijecedor
Reforço
(armadura + graute)
Enrijecedor
Cintamento
Intermediário
Cintamento
Intermediário
PLANTA
Alvenaria
ELEVAÇÃO
Alvenaria
PERFIL I ou H
NOTAS GERAIS
4
É parte do processo de dimensionamento e detalhamento considerar as condições particulares
de cada obra e atender às prescrições normativas vigentes. Este trabalho requer a participação
de um profissional qualificado, com experiência específica comprovada.
As vedações, principalmente as externas, devem ser projetadas para resistir aos esforços
horizontais oriundos da ação do vento e outras ações relevantes.
Sempre que for empregada solda de campo, essa deve ser realizada por profissional qualificado
e inspecionada dentro dos padrões normativos.
A aplicação de material selante nas juntas externas precisa seguir rigorosamente as prescrições
dos fornecedores e suportar a ação dos raios ultra-violetas (mastique poliuretânico ou silicone
neutro, por exemplo).
Para maiores informações consulte o site: www.gerdauacominas.com.br/perfis
Allen, E., "Fundamentals of Building Construction Materials and Methods", 3rd Ed., J.Wiley &
Sons Inc., Canada, USA, 1999.
Bender, R., "Una Visión de la Construcción Indutrializada", Ed. Gustavo Gili S.A., Baracelona,
1976.
Coelho, R. de A.,"Vedações para Edifícios em Estrutura Metálica : Critérios e Projetos", III
Seminário Intern. - O uso de Estrutura Metálicas na Construção Civil", Notas de aula, Belo
Horizonte, 2000.
Dur-O-Wall," Masonry Repair Handbook", Dur-O-Wall, USA, 1998.
Laska,W., "Masonry and Steel Detaling Handbook", The Arbedeen Group, USA, 1993.
RECOMENDAÇÕES
63
COLETÂNEA DO USO DO AÇO
REFERÊNCIAS BIBLIOGRÁFICAS

Coletânea manuais uso do aço 1

  • 1.
    COLETÂNEA DO USO DOAÇO 3ª Edição (Revisada e Ampliada) 2004 Volume 1 INTERFACE ENTRE PERFIS ESTRUTURAIS LAMINADOS E SISTEMAS COMPLEMENTARES Roberto de Araujo Coelho 1
  • 2.
    Coordenação: Djaniro Álvaro deSouza Colaboração: Christiane Mirian Haddad Fernando Ottoboni Pinho Rosângela C. Bastos Martins
  • 3.
    APRESENTAÇÃO A construção industrializadaoferece vantagens extraordinárias, desde a racionalização do processo construtivo até a conseqüente redução de custos e desperdícios. E quando se trata de racionalização do processo construtivo, é obrigatório considerar o uso de estruturas metálicas como alternativa. Utilizada largamente no segmento industrial brasileiro, a construção em aço ainda tem uma participação tímida no que se refere principalmente a edifícios de andares múltiplos. Há que destacar, entretanto, que nos últimos anos a construção em aço tem crescido exponencialmente, seguindo a inexorável tendência ao uso de processos industrializados e alta tecnologia. Trata-se de um desafio extraordinário, considerando-se que na costrução civil brasileira predomina a construção convencional e os métodos artesanais. Os Perfis Gerdau Açominas, laminados, cuja fabricação foi iniciada em 2002, representam um reforço em termos de produtos classe mundial, para ajudar o segmento da construção em aço a aumentar sua competitividade. É essencial na construção industrializada, dedicar-se mais tempo ao projeto e ao planejamento, em benefício de maior rapidez na execução da obra. A escolha dos elementos construtivos e a sua melhor combinação são fatores preponderantes para a racionalização da construção e a redução de prazos e custos. Nesse contexto, referindo-nos à construção em aço, a interface entre as vedações (paredes e lajes) e a estrutura requerem atenção especial, visando aumentar a velocidade da construção e prevenindo eventuais patologias. Quando lançamos a primeira edição deste manual, não tínhamos idéia da extraordinária demanda por parte dos profissionais do segmento para esse tipo de publicação. A 2ª edição também foi esgotada rapidamente, tornando-se um dos mais procurados manuais da Coletânea do Uso do Aço, editados pela Gerdau Açominas. Nesta 3ª edição, que publicamos com renovada satisfação, foram incluídas novas interfaces, abrangendo outros tipos de edificações e ampliando assim a sua utilização como material técnico de referência e consulta. COLETÂNEA DO USO DO AÇO
  • 4.
    ÍNDICE 1 Introdução..................................................................................................................7 2 InterfacesUsuais em Edifícios......................................................................................11 Vedações ................................................................................................................13 Painéis Pré-Moldados ..........................................................................................14 Placas, Pele de Vidro............................................................................................23 Parede Cortina....................................................................................................28 Paredes Moldadas “in Loco”..................................................................................30 Alvenaria Desvinculada .................................................................................30 Alvenaria Vinculada ......................................................................................42 Lajes ......................................................................................................................45 Laje Maciça Convencional ....................................................................................46 Laje Pré-Moldada Alveolar....................................................................................47 Laje Mista com Fôrma de Aço Incorporada .............................................................48 Laje Treliçada .....................................................................................................49 3 Interfaces Usuais em Galpões ......................................................................................51 Vedações ................................................................................................................53 Painel Pré-Moldado Alveolar.................................................................................55 Painel Metálico e Parede.......................................................................................56 Parede Moldada “in Loco”.....................................................................................59 4 Notas Gerais..............................................................................................................61 Recomendações ......................................................................................................63 Referências Bibliográficas .........................................................................................63 5 COLETÂNEA DO USO DO AÇO
  • 5.
  • 6.
    Neste manual sãoapresentadas diversas soluções possíveis para as interfaces entre os Perfis Gerdau Açominas e demais sistemas complementares estruturais e de vedação que contribuem para o funcionamento de uma edificação como um todo. As vedações verticais fazem parte do sistema responsável pela forma do edifício. Nelas estão inseridas as janelas, as portas, as instalações, e também fixados os revestimentos. Sua geometria é fruto da criatividade e experiência do arquiteto. As dimensões e formas definirão as opções de escolha do sistema a ser adotado, seja painel, placa, pele de vidro ou alvenaria convencional. Como representam quase a totalidade da superfície vertical do edifício, devem ser tratadas com a devida atenção e responsabilidade. As vedações horizontais, compostas pelas lajes, são elementos estruturais que, unidos à estrutura, garantem a sua sustentação. São responsáveis pela transferência das cargas verticais às vigas e, das horizontais, às colunas. O tipo de laje determina não só o desempenho da estrutura, como todo o desenvolvimento da obra quanto à produtividade, velocidade, precisão e segurança. A seção transversal e sua deformabilidade vertical definem as fixações das vedações verticais, principalmente as internas. Independente do grau de industrialização do processo construtivo adotado, a estrutura deverá estar em harmonia com os demais elementos que compõem a edificação. A escolha do tipo de vedação a ser projetada necessita ser cuidadosamente avaliada e precedida do estudo das características de cada sistema ou processo e de uma verificação da disponibilidade no mercado. Os detalhes sugeridos neste manual são meramente ilustrativos, devendo ser consultados os fornecedores quanto às especificações de cada sistema. Não devem, portanto, ser utilizados diretamente nos projetos e obras sem um prévio estudo e dimensionamento. INTRODUÇÃO 9 COLETÂNEA DO USO DO AÇO
  • 7.
  • 8.
    INTERFACES USUAIS EMEDIFÍCIOS VEDAÇÕES 13 COLETÂNEA DO USO DO AÇO
  • 9.
    14 COLETÂNEA DO USODO AÇO PAINÉIS PRÉ-MOLDADOS São paredes inteiras, industrializadas, posicionadas externamente à estrutura. Quando fixados diretamente nos pilares, reduzem significativamente o peso das vigas externas, pois não transferem cargas para as mesmas. É o sistema com maior grau de industrialização no processo construtivo e, quando necessário, podem substituir os contraventamentos metálicos externos, bastando que sejam corretamente projetados para tal situação. DET 01A DET 03 DET 04 DET 02 DET 01D DET 01C DET 05A DET 01B DET 05B
  • 10.
    15 COLETÂNEA DO USODO AÇO DET 01 APAINÉIS PRÉ-MOLDADOS Painel Perfil de Arremate Painel Pré-Moldado ELEVAÇÃO ISOMÉTRICO DET A DET A PLANTA Isolamento Térmico Tolerância Vedação Anti-Chama Apoio Fixação Tolerância Apoio Móvel (superior) Fixação Gravidade (inferior) Apoio Fixação Espaçador Divisória ("dry-wall") Fixação Gravidade Laje Selante Painel Painel Vedação Anti-Chama Laje DET A Estrutura não aparente. Painel pré-moldado de vedação. Alinhamento por fora da estrutura. PERFIL H PERFIL I PERFIL I PERFIL H PERFIL H
  • 11.
    DET 01 BPAINÉIS PRÉ-MOLDADOS 16 COLETÂNEA DO USO DO AÇO Estrutura não aparente. Painel pré-moldado de vedação. Alinhamento por fora da estrutura. Detalhe de arremate com a cobertura impermeabilizada. Pingadeira Tolerância Vedação Anti-Chama Tolerância Vedação Anti-Chama Perfil de Arremate ELEVAÇÃO Painel Interno ISOMÉTRICO DET A PLANTA Apoio Fixação Fixação Gravidade (inferior) Apoio móvel Fixação Gravidade (inferior) Apoio Fixação DET A Apoio Móvel (superior) Piso Impermeabilizado Painel Interno Laje DET A DET A Painel interno Painel Pré-Moldado DET A Painel externo Painel externo PERFIL I PERFIL H PERFIL H PERFIL I PERFIL H Borracha Vedação Painel Selante Painel
  • 12.
    DET 01 CPAINÉISPRÉ-MOLDADOS 17 COLETÂNEA DO USO DO AÇO Estrutura não aparente. Painel pré-moldado de vedação. Alinhamento por fora da estrutura. Detalhe de arremate com forro do pilotis. Forro Laje Laje Borracha Vedação Vedação Anti-Chama Isolamento Térmico Tolerância Painel Selante Painel Vedação Anti-Chama Divisória ("dry-wall") Junta tratada com selante Estabilizador Perfil de Arremate ELEVAÇÃO DET A PLANTA Apoio Fixação Fixação Gravidade (inferior) ISOMÉTRICO DET A Painel Fixação Gravidade Painel Pré-Moldado Apoio Fixação PERFIL H PERFIL I PERFIL H PERFIL H PERFIL I
  • 13.
    DET 01 DPAINÉIS PRÉ-MOLDADOS 18 COLETÂNEA DO USO DO AÇO Estrutura não aparente. Painel pré-moldado de vedação. Alinhamento por fora da estrutura. Detalhe de arremate com piso impermeabilizado. Laje Borracha Vedação Piso Selante Painel Laje Piso Interno Piso Impermeabilizado Piso Impermeabilizado Laje Piso Interno Fixação Gravidade (Inferior) DET AApoio Fixação ELEVAÇÃO Painel ISOMÉTRICO ALTERNATIVA Painel DET A Fixação Gravidade (Inferior) Apoio Fixação DET A Painel Pré-Moldado PERFIL H PERFIL I PERFIL H PERFIL H PERFIL I PERFIL I
  • 14.
    DET 02PAINÉIS PRÉ-MOLDADOS Estruturanão aparente. Painel pré-moldado de vedação. Alinhamento por fora da estrutura. Painel ISOMÉTRICO Laje Painel ELEVAÇÃO Vedação Anti-Chama Tolerância Apoio Móvel (superior) Fixação Gravidade Fixação Gravidade (inferior) Apoio FixaçãoLaje DET A DET A Espaçador Selante Painel Painel PLANTA Isolamento Térmico Tolerância Divisória ("dry-wall") Vedação Anti-Chama DET A Arremate Perfil de 19 COLETÂNEA DO USO DO AÇO PERFIL H PERFIL I PERFIL H PERFIL H PERFIL I
  • 15.
    DET 03 20 COLETÂNEA DOUSO DO AÇO Estrutura não aparente. Painel extrusado de vedação. Alinhamento por fora da estrutura. DET A Espaçador Selante Painel Painel Painel Extrusado ISOMÉTRICO Laje PLANTA Isolamento Térmico Tolerância Fixação Divisória ("dry-wall") Vedação Anti-Chama DET A Vedação Anti-Chama Fixação Fixação Painel Extrusado Laje Perfil de Arremate DET A DET A ELEVAÇÃO PAINÉIS PRÉ-MOLDADOS PERFIL H PERFIL I PERFIL H PERFIL I PERFIL H
  • 16.
    DET 04 21 COLETÂNEA DOUSO DO AÇO Estrutura aparente. Painel de Concreto Celular Autoclavado (CCA). Alinhamento pela face externa da coluna. Perfil "U" Placa EPS Painel CCA DET A Perfil "U" ELEVAÇÃO Painel CCA ISOMÉTRICO DET B DET A Placa EPS Cantoneira Perfil "U" Placa EPS DET B DET B PLANTA Painel CCA Painel CCA Perfil de Arremate Revestimento Externo Revestimento Interno Laje Laje Revestimento Selante Revestimento Selante Perfil "U" Painel Painel Espaçador Revestimento Externo Revestimento Interno Argamassa Adesiva Junta Movimento PAINÉIS PRÉ-MOLDADOS PERFIL H PERFIL I PERFIL H PERFIL H PERFIL I PERFIL H
  • 17.
    DET 05 A DET05 B 22 COLETÂNEA DO USO DO AÇO PAINÉIS PRÉ-MOLDADOS Painel extrusado de vedação. Detalhe de arremate com a cobertura impermeabilizada. Painel de Concreto Celular Autoclavado. Detalhe de arremate com a cobertura. Fixação Vedação Anti-Chama Piso Impermeabilizado Pingadeira Pingadeira Borracha Vedação Selante Painel Painel Selante Borracha Vedação Painel Placa de arremate Painel Extrusado DET A DET A Painel Interno DET A DET B DET B Placa de arremate ELEVAÇÃO DET B Laje Placa EPS Perfil de arremate Revestimento Externo Placa EPS Revestimento Interno Painel CCA Cantoneira / Perfil "U" Revestimento Selante Perfil "U" DET A Painel CCA DET A Perfil "U" ELEVAÇÃO DET A PERFIL I PERFIL H PERFIL H PERFIL I
  • 18.
    23 COLETÂNEA DO USODO AÇO PLACAS / PELE DE VIDRO São elementos de vedação (externos ou internos) industrializados, que necessitam de uma estrutura auxiliar para fixação, geralmente composta por perfis de alumínio ou de chapa galvanizada dobrada, denominada “steel frame”. O “dry wall” é o sistema interno mais comum. As placas internas são geralmente de gesso acartonado e as externas em vidro ou material cimentício, resistente à umidade. Neste último caso, necessitam de isolamento térmico adicional (manta de lã de rocha ou vidro) aplicado no vazio interno, entre as placas, onde as instalações são também facilmente posicionadas. DET 06 DET 08, 09 DET 07
  • 19.
    DET 06 PLACAS/ PELE DE VIDRO 24 COLETÂNEA DO USO DO AÇO Divisória interna. Placas de gesso acartonado. Alinhamento pela face da viga. PLANTA ISOMÉTRICO Placa de Gesso Acartonado ELEVAÇÃO Montante (ch. galv.) Montante (ch. galv.) Guia (ch. galv.) Guia (ch. galv.) Montante (ch. galv.) Placa de Gesso Acartonado Guia Montante Placa de Gesso Acartonado Placa de Gesso Acartonado Guia (ch. galv.) Guia Montante (ch. galv.) Laje Laje Isolante Térmico Isolamento Térmico PERFIL I PERFIL H PERFIL H PERFIL I PERFIL H
  • 20.
    DET 07 25 COLETÂNEA DOUSO DO AÇO Estrutura não aparente. Placas de vedação. Alinhamento pela face externa da coluna. ISOMÉTRICO DET A PLANTA DET A Placa Cimentícia (externo) Montante (ch. galv.) ELEVAÇÃO Placa Cimentícia (externo) Montante (ch. galv.) Montante (ch. galv.) Apoio Auxiliar Guia (ch. galv.) Guia (ch. galv.) Placa Cimentícia DET A Painel Painel Selante Laje Placa Gesso (interno) Laje Isolante Térmico Perfil de Arremate Isolamento Térmico Placa Gesso (interno) PLACAS / PELE DE VIDRO PERFIL H PERFIL I PERFIL H PERFIL H PERFIL I PERFIL H
  • 21.
    DET 08 26 COLETÂNEA DOUSO DO AÇO Estrutura não aparente. Placas de vedação. Alinhamento por fora da estrutura. ISOMÉTRICO DET A Montante Granito/ Mármore/ Placa Metálica Selante Granito/ Mármore/ Placa Metálica ELEVAÇÃO Laje Montante (galv. / al.) Junta Movimento DET A Suporte Granito/ Mármore/ Placa Metálica DET A Suporte Montante Granito/ Mármore/ Placa Metálica PLANTA Placa Gesso (interno) Isolante Térmico Isolamento Térmico Perfil de Arremate Placa Gesso (interno) Laje PLACAS / PELE DE VIDRO PERFIL H PERFIL I PERFIL H PERFIL H PERFIL I
  • 22.
    DET 09 27 COLETÂNEA DOUSO DO AÇO PLACAS / PELE DE VIDRO Estrutura não aparente. "Pele" de vidro. Alinhamento por fora da estrutura. Vidro Laje Laje Selante Vidro Vidro Selante Rodapé Forro Vidro Vidro Montante Junta Rodapé Rodapé Perfil de Arremate Suporte Arremate Montante ELEVAÇÃO ISOMÉTRICO Montante DET A DET A Arremate PLANTA Vidro PERFIL H PERFIL I PERFIL H PERFIL H PERFIL I
  • 23.
    28 COLETÂNEA DO USODO AÇO PAREDE CORTINA São paredes executadas externamente à estrutura, apoiadas diretamente nas fundações ou em vigas de transição. A estabilização horizontal se dá por meio de conectores fixados à estrutura no nível das lajes ou vigas. Funciona como uma “pele” e é ideal para obras industriais, com grandes alturas. DET 10
  • 24.
    DET 10PAREDE CORTINA 29 COLETÂNEADO USO DO AÇO Estrutura não aparente. Parede cortina. Alinhamento por fora da estrutura. ISOMÉTRICO ELEVAÇÃO DET A DET A Conector (cisalhamento) PLANTA Placa EPS Cintamento Alvenaria Alvenaria Placa EPS Conector (cisalhamento) Cintamento Laje Placa EPS Alvenaria Revestimento Revestimento Selante Junta Movimento Alvenaria Revestimento Externo Revestimento Interno Laje Revestimento Externo Revestimento Interno Espaçador PERFIL H PERFIL I PERFIL H PERFIL H PERFIL I
  • 25.
    30 COLETÂNEA DO USODO AÇO PAREDES MOLDADAS "IN LOCO" Alvenaria Desvinculada São paredes fixadas à estrutura por meio de sistemas que permitem pequenas movimentações diferenciais segundo seu plano. São empregadas em obras com grandes vãos, acima de 5 ou 6 m, geralmente comerciais e industriais. Utilizam-se duas cantoneiras paralelas ou um perfil “U”, gerando um sistema de encaixe da alvenaria que impede apenas movimentos transversais ao seu plano. Na junção entre a parede e o sistema de fixação formam-se juntas de movimento, incorporadas ao acabamento final. É um sistema com alto grau de confiabilidade que reduz significativamente o nível de patologias. DET 12 DET 13B DET 13 DET 13A DET 11 DET 15 DET 14 DET 11A, 11B DET 13C, 13D DET 12A
  • 26.
    DET 11PAREDES MOLDADAS"IN LOCO" 31 COLETÂNEA DO USO DO AÇO Estrutura aparente. Alvenaria desvinculada externa/interna. Alinhamento pelo eixo da coluna. DET A PLANTA ELEVAÇÃO Perfil "U" Alvenaria Placa EPS ISOMÉTRICO Cantoneira Perfil "U" (Alvenaria) DET A Alvenaria Alvenaria Perfil "U" Placa EPS (Alvenaria) Placa EPS Perfil "U" Junta Movimento DET A Junta Movimento Placa EPS Perfil "U" Alvenaria DET A Cantoneira Revestimento Interno Revestimento Externo Laje Revestimento Externo DET B Alvenaria Revestimento Interno Revestimento Externo Cantoneira / Perfil "U" Selante Revestimento Revestimento Laje Pingadeira DET B PERFIL H PERFIL H PERFIL I PERFIL H PERFIL I
  • 27.
    DET 11 APAREDES MOLDADAS "IN LOCO" 32 COLETÂNEA DO USO DO AÇO Estrutura aparente. Platibanda com laje impermeabilizada. Alinhamento pelo eixo da coluna. ISOMÉTRICO Laje Revestimento Externo Peitoril Alvenaria Placa EPS Revestimento Interno Selante Revestimento Externo Cantoneira / Perfil "U" Selante Revestimento Selante Rebaixo p/ a Impermeabilização Peitoril Selante Selante Projeção Peitoril Revestimento Laje Pingadeira DET A PLANTA ELEVAÇÃO Cantoneira DET A (Alvenaria) Cantoneira DET A Alvenaria DET A Cantoneira Alvenaria DET B DET B PERFIL H PERFIL H PERFIL I PERFIL H PERFIL I
  • 28.
    DET 11 BPAREDESMOLDADAS "IN LOCO" 33 COLETÂNEA DO USO DO AÇO Estrutura aparente. Cobertura com telhado. Alinhamento pelo eixo da coluna. Revestimento Externo Laje Telhado Rufo Metálico Rufo metálico Revestimento Externo Cintamento Telhado Projeção do rufo metálico Telhado Cintamento Cintamento Revestimento Laje Pingadeira (Alvenaria) Cantoneira DET A Cantoneira ELEVAÇÃO Alvenaria ISOMÉTRICO DET A Perfil "U" PLANTA DET A Perfil "U" DET B DET B Placa EPS Alvenaria Cantoneira / Perfil "U" Revestimento Selante PERFIL H PERFILH PERFIL I PERFIL H PERFIL I
  • 29.
    DET 12 PAREDESMOLDADAS "IN LOCO" 34 COLETÂNEA DO USO DO AÇO DET A Alvenaria Fixação Placa EPS DET A Placa EPS Barra de Fixação Junta Movimento PLANTA ISOMÉTRICO Ver DET A Alvenaria Placa EPS Selante Alvenaria Espaçador Revestimento Externo Laje Revestimento Externo Revestimento Externo ELEVAÇÃO Alvenaria Malha de Reforço Barra de Fixação DET A Barra de Fixação Placa EPS Perfil de Arremate Revestimento Externo Laje Revestimento Interno Estrutura não aparente. Alvenaria desvinculada externa. Alinhamento por fora da estrutura. PERFIL H PERFIL H PERFIL I
  • 30.
    DET 12 APAREDESMOLDADAS "IN LOCO" 35 COLETÂNEA DO USO DO AÇO Estrutura não aparente. Alvenaria desvinculada externa. Alinhamento por fora da estrutura. Detalhe de arremate nos pilotis. Placa EPS Barra de fixação Revestimento Externo Espaçador Alvenaria Placa EPS Alvenaria Laje Revestimento Externo Revestimento Externo Selante Placa EPS Junta Movimento Fixação Barra de fixação Pingadeira Alvenaria ELEVAÇÃO ISOMÉTRICO Alvenaria DET A DET A PLANTA Laje PERFIL H PERFIL H PERFIL H PERFIL I
  • 31.
    DET 13 PAREDESMOLDADAS "IN LOCO" 36 COLETÂNEA DO USO DO AÇO Estrutura não aparente. Alvenaria desvinculada externa/interna. Alinhamento por fora da estrutura. DET A ISOMÉTRICO ELEVAÇÃO Barra de Fixação Placa EPS Barra de Fixação DET A Malha de Reforço Alvenaria DET A Placa EPS Barra de Fixação Junta Movimento PLANTA Alvenaria Placa EPS Barra de fixação Revestimento Externo Perfil de Arremate Laje Alvenaria Placa EPS Selante Alvenaria Espaçador Revestimento Externo Revestimento Interno Revestimento Externo Revestimento Externo PERFIL H PERFIL H PERFIL I
  • 32.
    DET 13 A DET13 B PAREDES MOLDADAS "IN LOCO" 37 COLETÂNEA DO USO DO AÇO Estrutura não aparente. Alvenaria desvinculada externa/interna. Alinhamento por fora da estrutura. Estrutura não aparente. Alvenaria desvinculada externa/interna. Alinhamento por fora da estrutura. Alvenaria ISOMÉTRICO PLANTA Placa EPS Junta Movimento Junta Movimento Revestimento Interno Revestimento Externo ISOMÉTRICO Placa EPS Alvenaria PLANTA Junta Movimento Barra de Fixação Junta Movimento Revestimento Externo Revestimento Interno PERFIL H PERFIL H PERFIL H PERFIL H
  • 33.
    DET 13 CPAREDES MOLDADAS "IN LOCO" 38 COLETÂNEA DO USO DO AÇO Estrutura aparente. Platibanda em alvenaria com laje impermeabilizada. Alinhamento por fora da estrutura. Cintamento Laje Placa EPS Espaçador Revestimento Externo Revestimento Externo Alvenaria Placa EPS Alvenaria Placa EPS Revestimento Externo Revestimento Externo Selante Selante Placa EPS Selante Peitoril Rebaixo p/ a Impermeabilização Revestimento Externo Selante Peitoril Projeção Peitoril Cintamento Cintamento Alvenaria ISOMÉTRICO DET A Barra de fixação Perfil de arremate DET A Malha de reforço Barra de fixação (cfe. Det 13) Alvenaria PLANTA DET A ELEVAÇÃO PERFIL I PERFIL H PERFIL H
  • 34.
    DET 13 DPAREDESMOLDADAS "IN LOCO" 39 COLETÂNEA DO USO DO AÇO Estrutura não aparente. Cobertura com telhado. Alinhamento por fora da estrutura. Placa EPS Telhado Rufo metálico Cintamento Laje Revestimento externo Espaçador Revestimento Externo Revestimento Externo Revestimento Externo Alvenaria Alvenaria Placa EPS Selante Cintamento Placa EPS Telhado Rufo Metálico Telhado Projeção do rufo metálicoCintamento Barra de fixação DET A Malha de reforço Perfil de arremate DET A Barra de fixação ISOMÉTRICO ELEVAÇÃO DET A PLANTA Alvenaria PERFIL H PERFIL H PERFIL H PERFIL I
  • 35.
    DET 14 PAREDESMOLDADAS "IN LOCO" 40 COLETÂNEA DO USO DO AÇO Estrutura não aparente. Alvenaria dupla externa p/ região contraventamento. Alinhamento pelo eixo da viga. ISOMÉTRICO DET A ELEVAÇÃO Parede Dupla Fiada de Travamento Placa EPS Cantoneira Perfil "U" (Alvenaria) DET A Alvenaria Junta Movimento DET B (Alvenaria) DET B PLANTA Perfil "U" Placa EPS Junta Movimento Alvenaria Placa EPS DET B Alvenaria Dupla Cantoneiras Placa EPS Cantoneira Parede Dupla Parede Simples Malha de Reforço Placa Cimentícia Pino Fixação Revestimento Externo Laje Perfil de Arremate Contraventamento Revestimento Interno Cantoneira Alvenaria Espaçador Placa cimentícia Revestimento Revestimento Selante Espaçador Alvenaria Revestimento Selante Revestimento Pino Fixação Revestimento do Pilar Revestimento Externo Contraventamento Pino Fixação Revestimento Interno Contraventamento PERFIL I PERFIL H PERFIL H PERFIL H
  • 36.
    DET 15PAREDES MOLDADAS"IN LOCO" 41 COLETÂNEA DO USO DO AÇO Estrutura revestida. Alvenaria desvinculada externa. Alinhamento pela face externa da coluna. DET A PLANTA ELEVAÇÃO Perfil "U" Alvenaria Placa EPS ISOMÉTRICO Cantoneira Perfil "U" (Alvenaria) Malha de Reforço Placa Cimentícia DET A Pino Fixação Alvenaria Perfil "U" Placa EPS Junta Movimento Cantoneira Junta Movimento Alvenaria Alvenaria Cantoneira Placa EPS DET B Pino Fixação Placa EPS Pino Fixação Revestimento do Pilar DET B (Alvenaria) DET B Revestimento Interno Revestimento Externo Laje Perfil de Arremate Cantoneira Alvenaria Espaçador Revestimento Interno Placa Cimentícia Selante Revestimento Externo Espaçador Alvenaria Selante Revestimento Externo Revestimento Externo Revestimento Externo Revestimento Externo PERFIL H PERFIL H PERFIL H PERFIL I PERFIL H
  • 37.
    42 COLETÂNEA DO USODO AÇO PAREDES MOLDADAS "IN LOCO" Alvenaria Vinculada São paredes unidas solidariamente à estrutura, trabalhando em conjunto, sendo mais utilizadas em edifícios com pequenos vãos (até 5 m aproximadamente), e destinados ao uso residencial ou salas comerciais, onde o emprego de juntas não é esteticamente ideal. Nas ligações alvenaria-estrutura são empregadas barras de aço tipo estribo, denominadas ferro-cabelo, soldadas à estrutura. Preferencialmente, devem ser empregados segmentos de telas eletrossoldadas. Esse tipo de parede trabalha em conjunto com a estrutura, aumentando sua rigidez. Em situações especiais, podem ser eliminados os elementos de contraventamento metálico, transferindo os esforços para as paredes. Neste caso, devem ser consideradas como elementos estruturais e devidamente dimensionadas conforme a "Teoria das Diagonais Equivalentes", por exemplo. DET 16 DET 16A DET 16B
  • 38.
    DET 16PAREDES MOLDADAS"IN LOCO" 43 COLETÂNEA DO USO DO AÇO Estrutura aparente. Alvenaria vinculada externa/interna. Alinhamento pelo eixo da coluna. ISOMÉTRICO Tela Eletrossoldada Alvenaria Tela Eletrossoldada Argamassa Fraca Expansível ELEVAÇÃO Alvenaria Tela Eletrossoldada Alvenaria DET A DET B DET B Tela Eletrossoldada Tela Eletrossoldada DET A PLANTA Alvenaria Revestimento Externo DET C Laje Revestimento Externo Argamassa Fraca Expansível Revestimento Externo Selante Argamassa Fraca Expansível Revestimento Externo Selante Friso Revestimento Interno Revestimento Externo Friso Revestimento Laje Pingadeira DET C PERFIL H PERFIL I PERFIL H PERFIL I PERFIL I PERFIL H PERFIL H
  • 39.
    DET 16 A DET16 B PAREDES MOLDADAS "IN LOCO" 44 COLETÂNEA DO USO DO AÇO Variação DET 11. Fixação em forma de estribo. Alvenaria Solda de campo ISOMÉTRICO PLANTAFixação (estribo) Fixação (estribo) Fixação (estribo) Alvenaria Friso Revestimento ExternoRevestimento Interno Variação DET 11. Fixação em forma de gancho. Alvenaria Solda de campo ISOMÉTRICO PLANTA Fixação (gancho) Fixação (gancho) Alvenaria Fixação (gancho) Revestimento Externo Friso Revestimento Interno PERFIL H PERFIL H PERFIL H PERFIL H
  • 40.
    LAJES 45 COLETÂNEA DO USODO AÇO INTERFACES USUAIS EM EDIFÍCIOS
  • 41.
    DET 17 LAJECONVENCIONAL 46 COLETÂNEA DO USO DO AÇO Laje maciça, moldada "in loco". Perfil de arremate DETALHE Conector (perfil "U") ELEVAÇÃO Laje maciça Laje de concreto armado Conector (perfil "U" laminado) Conector (perfil "U") Laje PERFIL H PERFIL I PERFIL H PERFIL I PERFIL I
  • 42.
    DET 18LAJE ALVEOLAR 47 COLETÂNEADO USO DO AÇO Laje pré-moldada. Extrusada, protendida. Não necessita escoramento. Laje DETALHE Conector (stud bolt) Armadura de Ligação Laje Pré-Moldada Conector (stud bolt) ELEVAÇÃO Laje Pré-Moldada Recorte no Pré-Moldado Capa de Concreto Cintamento Periférico Capa de Concreto PERFIL I PERFIL I PERFIL H PERFIL H PERFIL I
  • 43.
    DET 19 LAJECOM FÔRMA DE AÇO INCORPORADA 48 COLETÂNEA DO USO DO AÇO Laje maciça. Forma metálica incorporada. Não necessita escoramento. ISOMÉTRICO Laje ELEVAÇÃO Conector (stud bolt) Forma Metálica (steel deck) Laje Concreto Conector (stud bolt) DETALHE Forma Metálica (steel deck) Vazio Perfil de Arremate hc>50mm >15mm PERFIL H PERFIL I PERFIL H PERFIL I PERFIL I PERFIL I
  • 44.
    Capa de concreto Cintamento periférico BlocoEPS Conector (stud bolt) ELEVAÇÃO Laje treliçada Laje treliçada DET 20LAJE TRELIÇADA 49 COLETÂNEA DO USO DO AÇO Laje pré-moldada treliçada. Necessita escoramento parcial. Capa de concreto Laje DETALHE Conector (stud bolt) Bloco EPS Laje treliçada PERFIL I PERFIL I PERFIL H PERFIL H PERFIL I
  • 45.
  • 46.
    INTERFACES USUAIS EMGALPÕES VEDAÇÕES 53 COLETÂNEA DO USO DO AÇO
  • 47.
    54 COLETÂNEA DO USODO AÇO VEDAÇÕES As vedações de galpões diferem das convencionais em alguns aspectos importantes: • Grandes dimensões, tanto no comprimento quanto na altura; • Bordo superior livre, sem apoio direto na estrutura; • Estrutura com maior deslocamento horizontal na parte superior; • Esforços horizontais elevados (vento, impacto). Para as vedações, devem ser definidos a posição em relação à estrutura, as condições de apoio em todo o perímetro, o sistema de fixação à estrutura, as juntas de movimentação, as cargas transversais e verticais, a espessura da parede, e o tipo de material a ser empregado. Nos locais onde haja a possibilidade de choque de veículos (carregadeiras, empilhadeiras) com as paredes, deve ser prevista a execução de elementos (bate-rodas) que impeçam esse tipo de impacto. Caso contrário, os esforços devem ser previstos no dimensionamento das paredes. As variações dimensionais das vedações, devido à temperatura e umidade, podem provocar esforços importantes quando as dimensões forem elevadas. Neste caso deve ser avaliada a necessidade e considerada a utilização de juntas de movimento. DET 23 DET 22, 22A DET 24 DET 21 DET 25
  • 48.
    DET 21PAINEL PRÉ-MOLDADOALVEOLAR 55 COLETÂNEA DO USO DO AÇO Vedação externa em painel pré-moldado. Alinhamento por fora da estrutura. Telha Metálica Rufo Calha Argamassa de Assentamento Painel pré-moldado Borracha Vedação Selante Painel Painel Neoprene Fixação DET A PLANTA Painel DET A Fixação ELEVAÇÃO DET B DET B DET B PERFIL I ou H PERFIL I ou H
  • 49.
    DET 22 PAINELMETÁLICO E PAREDE 56 COLETÂNEA DO USO DO AÇO Vedação externa. Alinhamento por fora da estrutura. Revestimento Externo Revestimento Interno Placa EPS Junta Movimento Revestimento Externo Placa EPS Junta Movimento Revestimento Interno Conector Telha Metálica Telha Metálica Calha Rufo Cintamento de Topo Cintamento Intermediário Revestimento Revestimento Selante EPS Alvenaria Alvenaria Revestimento Selante Perfil "U" Alvenaria Perfil "U" (duplo) DET A ELEVAÇÃO DET A Alvenaria DET B DET B ALTERNATIVA Alvenaria PLANTA Alvenaria Perfil "U" DET A PERFIL I ou H PERFIL I ou H PERFIL I ou H
  • 50.
    DET 22 APAINELMETÁLICO E PAREDE 57 COLETÂNEA DO USO DO AÇO Vedação externa. Alinhamento por fora da estrutura. Revestimento Externo Revestimento Interno Placa EPS Junta Movimento Telha Metálica Telha Metálica CalhaRufo Cintamento de Topo Revestimento Selante Perfil "U" Alvenaria Revestimento Externo Revestimento Interno Junta Movimento Placa EPS Perfil "U" (duplo) DET A ELEVAÇÃO DET A Alvenaria PLANTA Perfil "U" DET A Perfil "U" (duplo) PLANTA - ALVENARIA Alvenaria DET A DET APilarete (Perfil "U"- duplo) PERFIL I ou H PERFIL I ou H
  • 51.
    DET 23 58 COLETÂNEA DOUSO DO AÇO Vedação externa. Alinhamento pela face externa da coluna. DET A Alvenaria Alvenaria Cantoneira Selante Revestimento ELEVAÇÃO PLANTA DET A Alvenaria Telha Metálica Telha Metálica Cintamento Intermediário Cintamento Intermediário Calha Rufo Cantoneira Placa EPS Revestimento Interno Revestimento Externo DET A PAINEL METÁLICO E PAREDE PERFIL I ou H PERFIL I ou H PERFIL I ou H
  • 52.
    DET 24PAREDES MOLDADAS"IN LOCO" 59 COLETÂNEA DO USO DO AÇO Vedação externa. Alinhamento por fora da estrutura. Cintamento Intermediário Cintamento de Topo Revestimento Externo Revestimento Interno Calha Rufo Telha Metálica Junta Movimento Placa EPS Cintamento Intermediário Revestimento Selante Perfil "U" Alvenaria Perfil "U" DET A Alvenaria DET A Perfil "U" (duplo) PLANTA DET A Alvenaria ELEVAÇÃO PERFIL I ou H PERFIL I ou H
  • 53.
    DET 25 PAREDESMOLDADAS "IN LOCO" 60 COLETÂNEA DO USO DO AÇO Vedação externa em alvenaria. Alvenaria com enrijecedor. Cintamento de Topo Telha Metálica Rufo Terça Cintamento Intermediário Enrijecedor Reforço (armadura + graute) Enrijecedor Cintamento Intermediário Cintamento Intermediário PLANTA Alvenaria ELEVAÇÃO Alvenaria PERFIL I ou H
  • 54.
  • 55.
    É parte doprocesso de dimensionamento e detalhamento considerar as condições particulares de cada obra e atender às prescrições normativas vigentes. Este trabalho requer a participação de um profissional qualificado, com experiência específica comprovada. As vedações, principalmente as externas, devem ser projetadas para resistir aos esforços horizontais oriundos da ação do vento e outras ações relevantes. Sempre que for empregada solda de campo, essa deve ser realizada por profissional qualificado e inspecionada dentro dos padrões normativos. A aplicação de material selante nas juntas externas precisa seguir rigorosamente as prescrições dos fornecedores e suportar a ação dos raios ultra-violetas (mastique poliuretânico ou silicone neutro, por exemplo). Para maiores informações consulte o site: www.gerdauacominas.com.br/perfis Allen, E., "Fundamentals of Building Construction Materials and Methods", 3rd Ed., J.Wiley & Sons Inc., Canada, USA, 1999. Bender, R., "Una Visión de la Construcción Indutrializada", Ed. Gustavo Gili S.A., Baracelona, 1976. Coelho, R. de A.,"Vedações para Edifícios em Estrutura Metálica : Critérios e Projetos", III Seminário Intern. - O uso de Estrutura Metálicas na Construção Civil", Notas de aula, Belo Horizonte, 2000. Dur-O-Wall," Masonry Repair Handbook", Dur-O-Wall, USA, 1998. Laska,W., "Masonry and Steel Detaling Handbook", The Arbedeen Group, USA, 1993. RECOMENDAÇÕES 63 COLETÂNEA DO USO DO AÇO REFERÊNCIAS BIBLIOGRÁFICAS