Isenção de Responsabilidade
Esta publicação é traduzida a partir da versão em língua inglesa e, apesar, dos grandes esforços
para garantir uma tradução acurada, a AWS não oferece nenhuma garantia de sua exatidão ou
completude, nem é a AWS responsável por quaisquer erros, omissões ou ambiguidades que por
virtude apareçam neste documento por resultado de sua tradução. O texto em língua inglesa é a
única versão oficial e deve ser a versão referida em casos de litígio.
Disclaimer
This publication is translated from the original English version and while reasonable efforts have
been made to ensure an accurate translation, AWS makes no warranty as to precision or
completeness, nor is AWS responsible for any errors, omission, or ambiguities appearing in this
document as a result of the translation. The English text is the only official version and shall be
referred to in cases of dispute.
AWS D1.1/D1.1M:2010
Tradução de:
Structual Welding Code – Steel
Aprovado pelo
Instituto Nacional Americano de Padrões
American National Standards Institute
11 de março de 2010
Código de Soldagem Estrutural —
Aço
22ª Edição
Substitui AWS D1.1/D1.1M:2008
Preparado pelo
Comitê D1 de Soldagem Estrutural da Sociedade Americana de Soldagem (AWS) D1
Sob direção do
Comitê de Atividades Técnicas da AWS
Aprovado pela
Diretoria da AWS
Resumo
Este código aborda os requisitos de soldagem para qualquer tipo de estrutura soldada feita com aços
construtivos de carbono e baixa liga. As cláusulas 1 a 8 constituem um corpo de regras para a
regulamentação de solda nas construções com aço. Neste código existem nove anexos normativos e
doze informativos. Comentários sobre o código estão inclusosnestedocumento.
AWS D1.1/D1.1M:2010
140
Livro de Norma Internacional Número: 978-0-87171-772-6
Sociedade Americana de Soldagem
550 N.W. LeJeune Road, Miami, FL 33126 EUA
© 2010 Sociedade Americana de Soldagem
Todos os direitos reservados
Direitos de Reprodução. Nenhuma parte desta norma pode ser reproduzida, armazenada
em sistema de recuperação ou transmitida de qualquer forma, inclusive mecânica,
fotocópia, gravação ou qualquer outra, sem a autorização prévia por escrito dos detentores
dos direitos autorais.
Autorização para fotocopiar itens apenas para uso interno, pessoal ou educacional em aula
ou o uso interno, pessoal ou educacional em aula de clientes específicos é garantido pela
Sociedade Americana de Soldagem contanto que as taxas apropriadas sejam pagas ao
Centro de Esclarecimento de Direitos Autorais - Copyright Clearance Center, 222
Rosewood Drive, Danvers, MA, 01923, EUA, tel: 00 1 (978) 750-8400;
Internet:<www.copyright.com>.
AWS D1.1/D1.1M:2010
iii
Declaração sobre o Uso dos Padrões da Sociedade Americana de Soldagem
Todos os padrões (códigos, especificações, práticas recomendadas, métodos, classificações e guias) da Sociedade
Americana de Soldagem (AWS) são padrões de consenso voluntário que foram desenvolvidos de acordo com as
regras do Instituto Nacional Americano de Padrões (American National Standards Institute – ANSI). Quando os
Padrões Nacionais Americanos da AWS são incorporados ou fazem parte de documentos que estão inclusos nas leis
e regulamentações estaduais ou federais, ou em regulamentações de outros órgãos governamentais, suas provisões
carregam a autoridade legal completa do estatuto. Em tais casos, quaisquer alterações nestes padrões da AWS
precisam ser aprovadas pelo órgão de governo tendo jurisdição estatutária antes de se tornarem partes dessas leis e
regulamentações. Em todos os casos, estes padrões carregam a autoridade legal completa do contrato ou outro
documento que invoca os padrões AWS. Onde existe esta relação contratual, alterações ou desvios nos requisitos de
uma norma AWS precisam ser por acordo entre as partes contratantes.
Os Padrões Nacionais Americanos da AWS são desenvolvidos através de um processo de desenvolvimento de
padrões por consenso que reúne voluntários representando vários pontos de vista e interesses para atingir um
consenso. Embora a AWS administre o processo e estabeleça regras para promover justiça no desenvolvimento do
consenso, ela não testa, avalia ou verifica independentemente a precisão de quaisquer informações ou a integridade
de quaisquer julgamentos contidos em seus padrões.
A AWS renuncia à responsabilidade por quaisquer danos a pessoas ou propriedade, ou outros prejuízos de qualquer
natureza, sejam especiais, indiretos, consequenciais ou compensatórios, resultando direta ou indiretamente da
publicação, uso ou confiança nesta norma. A AWS também não garante a precisão ou completude de quaisquer
informações publicadas aqui.
Ao lançar e tornar esta norma disponível, a AWS não está tomando a seu cargo prestar serviços profissionais ou
outros para, ou em nome de, qualquer pessoa ou entidade, nem está tomando a seu cargo realizar qualquer obrigação
devida por qualquer pessoa ou entidade a outra pessoa. Qualquer pessoa usando estes documentos deveria confiar
em seu próprio julgamento independente ou, conforme apropriado, procurar o aconselhamento de um profissional
competente para determinar o exercício de cuidados razoáveis em qualquer dada circunstância. É presumido que o
uso desta norma e suas provisões está confiado a equipes apropriadamente qualificadas e competentes.
Esta norma pode ser substituído pelo lançamento de novas edições. O usuário deve assegurar-se de que tem a última
edição.
A publicação desta norma não autoriza a infração de qualquer patente ou nome comercial. Os usuários desta norma
aceitam toda e qualquer responsabilidade pela infração de quaisquer itens de patente ou nome comercial. A AWS
renuncia à responsabilidade pela infração de qualquer patente ou nome comercial de produto resultante do uso desta
norma.
Por fim, a AWS não monitora, policia, ou faz cumprir a conformidade com esta norma, nem tem os poderes para
fazê-lo.
Por ocasiões, texto, tabelas, ou figuras são impressos incorretamente, constituindo erratas. Tais erratas, quando
descobertas, são postadas na página da web da AWS (www.aws.org).
Interpretações oficiais de qualquer tipo de quaisquer requisitos técnicos nesta norma só podem ser obtidas mediante
o envio de uma requisição por escrito para o comitê técnico apropriado. Tal requisição deve ser endereçada à
Sociedade Americana de Soldagem, Aos Cuidados de: Diretor Executivo, Divisão de Serviços Técnicos, 550 N.W.
LeJeune Road, Miami, FL, 33126, EUA (ver Anexo O).Com respeito a investigações técnicas relativas aos padrões
da AWS, opiniões orais a respeitos dos padrões da AWS podem ser fornecidas.
Essas opiniões são oferecidas apenas como uma conveniência para usuários desta norma, e não constituem
aconselhamento profissional. Essas opiniões apenas representam as opiniões pessoais de indivíduos particulares que
as fornecem. Esses indivíduos não falam em nome da AWS, nem essas opiniões orais constituem opiniões oficiais
ou não ou interpretações da AWS. Além disso, opiniões orais são informais e não deveriam ser usadas como uma
alternativa a uma interpretação oficial.
Esta norma está sujeita à revisão do Comitê D1 de Soldagem Estrutural a qualquer momento. Ele precisa ser
revisado a cada cinco anos, e precisa ser ou reafirmado ou recolhido. Comentários (recomendações, acréscimos ou
exclusões)e quaisquer dados pertinentes que possam ser úteis para melhorar esta norma são requisitados e devem ser
endereçados ao Escritório Central da AWS. Tais comentários receberão consideração cuidadosa do Comitê D1 de
Soldagem Estrutural e o autor do comentário será informado da resposta do Comitê aos comentários. Convidados
são bem-vindos para assistir a todas as reuniões do Comitê D1 de Soldagem Estrutural para expressar seus
comentários verbalmente. Procedimentos para apelar de uma decisão adversa a respeito de qualquer destes
comentários são fornecidos nas Regras de Operação do Comitê de Atividades Técnicas. Uma cópia destas Regras
pode ser obtida na Sociedade Americana de Soldagem, 550N.W. LeJeune Road, Miami, FL 33126, EUA.
AWS D1.1/D1.1M:2010
140
Esta página está em branco intencionalmente.
AWS D1.1/D1.1M:2010
v
Dedicatória
O Comitê D1 de Soldagem Estrutural e o Subcomitê D1Q de
Estruturas em Aço humildemente dedicam esta edição do
Código de Soldagem Estrutural – Aço, D1.1/D1.1M, à
memória de dois antigos voluntários.
FRED C. BREISMEISTER
1940–2009
Desde 1985, Fred incansavelmente ajudou a melhorar vários
Códigos de Soldagem estrutural D1, inclusiveD1.1,
Structural Welding Code – Steel, D1.6, Structural Welding
Code – Stainless Steele mais recentemente D1.8, Structural
Welding Code – Seismic Supplement. Por muitos anos, ele
presidiu o Subcomitê de Pré-Qualificação D1B. O Comitê
D1 irá sem dúvida sentir falta de um grande amigo e
contribuinte da equipe.
DONALD A. SHAPIRA
1956–2009
Desde 1996, Don contribuiu entusiasticamente com vários
Códigos D1, inclusiveD1.1, Structural Welding Code, D1.6,
Structural Welding Code – Stainless Steel e o Código de
Soldagem Estrutural – Suplemento Sísmico, D1.8, Structural
Welding Code – Seismic Supplement. Como diretor do
Subcomitê D1K, ele supervisionou a última publicação de
D1.6, Structural Welding Code – Stainless Steel. O Comitê D1
lembra os esforços de Don com carinho e apreciação.
AWS D1.1/D1.1M:2010
140
Esta página está em branco intencionalmente.
AWS D1.1/D1.1M:2010
vii
Equipe
Comitê D1 de Soldagem Estrutural da AWS
D. K. Miller, Presidente The Lincoln Electric Company
A. W. Sindel, 1º Vice-Presidente Alstom Power, Incorporated
T. L. Niemann, 2º Vice-Presidente Minnesota Department of Transportation
S. Morales, Secretário American Welding Society
N. J. Altebrando STV, Incorporated
F. G. Armao The Lincoln Electric Company
E. L. Bickford Acute Technological Services
B. M. Butler Walt Disney World Company
H. H. Campbell III Pazazu Engineering
L. E. Collins Team Industries, Incorporated
R. B. Corbit Exelon Nuclear Corporation
R. A. Dennis Consultor
M. A. Grieco Massachusetts Department of Transportation
C. R. Hess High Steel Structures, Incorporated (Aposentado)
C. W. Holmes Modjeski and Masters, Incorporated
J. J. Kenney Shell International E & P
J. H. Kiefer ConocoPhillips Company
V. Kuruvilla Genesis Quality Systems
J. Lawmon American Engineering & Manufacturing, Incorporated
N. S. Lindell Inspectech Incorporated
D. R. Luciani Canadian Welding Bureau
S. L. Luckowski Department of the Army
P. W. Marshall MHP Systems Engineering
M. J. Mayes Mayes Testing Engineers, Incorporated
D. L. McQuaid D. L. McQuaid and Associates, Incorporated
R. D. Medlock High Steel Structures, Incorporated
J. Merrill MACTEC, Incorporated
J. B. Pearson, Jr. LTK Engineering Services
D. C. Phillips Hobart Brothers Company
D. D. Rager Rager Consulting, Incorporated
T. J. Schlafly American Institute of Steel Construction
D. R. Scott PSI (Aposentado)
R. E. Shaw, Jr. Steel Structures Technology Center, Incorporated
R. W. Stieve Greenman-Pederson, Incorporated
P. J. Sullivan Massachusetts Department of Transportation (Aposentado)
M. M. Tayarani Massachusetts Department of Transportation
K. K. Verma Federal Highway Administration
B. D. Wright Advantage Aviation Technologies
Conselheiros do Comitê D1 de Soldagem Estrutural
W. G. Alexander WGAPE
E. M. Beck MACTEC, Incorporated
AWS D1.1/D1.1M:2010
140
O. W. Blodgett The Lincoln Electric Company (Aposentado)
M. V. Davis Consultor
Conselheiros do Comitê D1 de Soldagem Estrutural (Continuação)
G. L. Fox Consultor
G. J. Hill G. J. Hill and Associates, Incorporated
M. L. Hoitomt Hoitomt Consulting Services
D. R. Lawrence II Butler Manufacturing Company (Aposentado)
W. A. Milek, Jr. Consultor
J. E. Myers Consultor
J. W. Post J. W. Post and Associates, Incorporated
Subcomitê D1Q em Aço da AWS
D. D. Rager, Presidente Rager Consulting, Incorporated
T. Schlafly, Vice-Presidente American Institute of Steel Construction
S. Morales, Secretário American Welding Society
N. J. Altebrando STV, Incorporated
M. Bernasek C-spec
E. L. Bickford Acute Technological Services
B. M. Butler Walt Disney World Company
J. W. Cagle C P Buckner Steel Erection, Incorporated
W. P. Capers Walt Disney World Company
H. H. Campbell III Pazazu Engineering
L. E. Collins Team Industries, Incorporated
R. A. Dennis Consultor
D. A. Dunn PSI
K. R. Fogleman Valmont Industries
J. Guili Stud Welding Associates
M. J. Jordan Johnson Plate and Tower Fabrication
J. J. Kenney Shell International E & P
J. H. Kiefer ConocoPhillips Company
L. A. Kloiber LeJeune Steel Company
S. W. Kopp High Steel Structures
J. E. Koski Stud Welding Products, Incorporated
V. Kuruvilla Genesis Quality Systems
K. Landwehr Schuff Steel Company
D. R. Luciani Canadian Welding Bureau
P. W. Marshall MHP Systems Engineering
R. P. Marslender Kiewit Offshore Services, LTD
G. S. Martin GE Energy
M. J. Mayes Mayes Testing Engineers, Incorporated
R. D. Medlock High Steel Structures, Incorporated
J. Merrill MACTEC, Incorporated
J. I. Miller Helix Energy Solutions
S. P. Moran PDM Bridge LLC
AWS D1.1/D1.1M:2010
ix
J. C. Nordby Entergy
J. A. Packer University of Toronto
F. J. Palmer Steel Tube Institute
D. R. Scott PSI (Aposentado)
R. E. Shaw, Jr. Steel Structures Technology Center, Incorporated
A. W. Sindel Alstom Power, Incorporated
R. W. Stieve Greenman-Pederson, Incorporated
S. J. Thomas VP Buildings, Incorporated
W. A. Thornton Cives Corporation
R. H. R. Tide Wiss, Janney, Elstner Associates
P. Workman Tru-Weld
Conselheiros do Comitê D1Q de Aço
U. W. Aschemeier H. C. Nutting/A Terracon Company
H. A. Chambers Nelson Stud Welding
R. B. Corbi Exelon Nuclear Corporation
H. E. Gilmer Texas Department of Transportation
M. A. Grieco Massachusetts Department of Transportation
M. J. Harker Idaho National Laboratory
C. W. Hayes The Lincoln Electric Company
C. R. Hess High Steel Structures
G. J. Hill G. J. Hill and Associates, Incorporated
C. W. Holmes Modjeski and Masters, Incorporated
W. Jaxa-Rozen Bombardier Transportation
D. R. Lawrence II Butler Manufacturing Company (Aposentado)
N. S. Lindell Inspectech Consulting and Testing
H. W. Ludewig Caterpillar, Incorporated
D. L. McQuaid D. L. McQuaid and Associates, Incorporated
J. K. Mieseke PDM Bridge, Eau Clair Wisc
W. A. Milek, Jr. Consultor
D. K. Miller The Lincoln Electric Company
L. Muir Cives Steel Company
J. B. Pearson, Jr. LTK Engineering Services
D. C. Phillips ITW, Hobart Brothers Company
J. W. Post J. W. Post and Associates, Incorporated
J. Ross U.S. Army Corps of Engineers
P. J. Sullivan Massachusetts Department of Transportation (Aposentado)
M. M. Tayarani Massachusetts Department of Transportation
J. L. Uebele Waukesha City Tech College
K. K. Verma Federal Highway Administration
D. G. Yantz Canadian Welding Bureau
O. Zollinger Ohmstede Ltd.
Subcomitê D1Q Grupo de Tarefas em Projeto
J. J. Kenney, Presidente Shell International E & P
W. P. Capers,Vice-Presidente Walt Disney World Company
AWS D1.1/D1.1M:2010
x
N. J. Altebrando STV, Incorporated
B. M. Butler Walt Disney World Company
T. Green Wiss, Janney, Elstner Associates
W. Jaxa-Rozen Bombardier Transportation
M. J. Jordan Johnson Plate and Tower Fabrication
L. A. Kloiber LeJeune Steel Company
P. W. Marshal MHP Systems Engineering
L. Muir Cives Steel Company
J. A. Packer University of Toronto
F. J. Palmer Steel Tube Institute
J. B. Pearson, Jr. LTK Engineering Services
T. J. Schlafly American Institute of Steel Construction
R. E. Shaw, Jr. Steel Structures Technology Center, Incorporated
S. J. Thomas VP Buildings, Incorporated
R. H. R. Tide Wiss, Janney, Elstner Associates
Conselheiros do Subcomitê D1Q Grupo de Tarefas em Projeto
O. W. Blodgett The Lincoln Electric Company (Aposentado)
W. A. Milek, Jr. Consultor
J. D. Ross U.S. Army of Corps of Engineers
W. A. Thornton Cives Corporation
J. Desjardins Bombardier Transportation
Subcomitê D1Q Grupo de Tarefas em Qualificação
J. H. Kiefer, Presidente ConocoPhillips Company
E. L. Bickford,Vice-Presidente Acute Technological Services
B. Anderson Kawasaki Motors
M. Bernasek C-spec
R. B. Corbit Exelon Nuclear Corporation
R. A. Dennis Consultor
M. A. Grieco Massachusetts Department of Transportation
M. J. Harker Idaho National Laboratory
J. J. Kenney Shell International E & P
V. Kuruvilla Genesis Quality Systems
K. Landwehr Schuff Steel Company
R. P. Marslender Kiewit Offshore Services, LTD
J. Mayne Valmont Industries
J. I. Miller Helix Energy Solutions
J. C. Nordby Entergy
D. D. Rager Rager Consulting, Incorporated
A. W. Sindel Alstom Power, Incorporated
D. Stickel Caterpillar, Incorporated
M. M. Tayarani Massachusetts Department of Transportation
J. L. Uebele Waukesha County Technical College
Conselheiros do Subcomitê D1Q Grupo de Tarefas em Qualificação
AWS D1.1/D1.1M:2010
xi
D. R. Lawrence II Butler Manufacturing Company (Aposentado)
G. S. Martin GE Energy
D. C. Phillips Hobart Brothers Company
J. W. Post J. W. Post and Associates, Incorporated
K. K. Verma Federal Highway Administration
D. G. Yantz Canadian Welding Bureau
Subcomitê D1Q Grupo de Tarefas em Fabricação
V. Kuruvilla, Presidente Genesis Quality Systems
H. E. Gilmer,Vice-Presidente Texas Department of Transportation
B. Anderson Kawasaki Motors
E. L. Bickford Acute Technological Services
J. W. Cagle C P Buckner Steel Erection, Incorporated
H. H. Campbell III Pazazu Engineering
L. E. Collins Team Industries, Incorporated
R. A. Dennis Consultor
K. R. Fogleman Valmont Industries
M. E. Gase Soil and Materials Engineers, Incorporated
M. A. Grieco Massachusetts Department of Transportation
C. R. Hess High Steel Structures, Incorporated
G. J. Hill G. J. Hill & Associates
C. W. Holmes Modjeski & Masters, Incorporated
Subcomitê D1Q Grupo de Tarefas em Fabricação (Continuação)
J. H. Kiefer ConocoPhillips Company
K. Landwehr Schuff Steel Company
E. S. LaPann Consultor
C. A. Mankenberg Shell International E & P
R. P. Marslender Kiewit Offshore Services, LTD
G. S. Martin GE Energy
D. L. McQuaid D. L. McQuaid & Associates, Incorporated
R. D. Medlock High Steel Structures, Incorporated
J. E. Mellinger Pennoni Associates, Incorporated
W. A. Milek Consultor
J. I. Miller Helix Energy Solutions
T. J. Schlafly American Institute of Steel Construction
A. W. Sindel Alstom Power, Incorporated
J. Sokolewicz Trinity Rail
K. K. Verma Federal Highway Administration
Conselheiros do Subcomitê D1Q Grupo de Tarefas em Fabricação
W. G. Alexander WGAPE
F. R. Beckmann Consultor
E. L. Bickford Acute Technologies Services
G. L. Fox Consultor
J. E. Myers Consultor
J. W. Post J. W. Post and Associates, Incorporated
R. H. R. Tide Wiss, Janney, Elstner Associates
AWS D1.1/D1.1M:2010
xii
Subcomitê D1Q Grupo de Tarefasem Inspeção
D. R. Scott, Presidente PSI (Aposentado)
G. S. Martin,Vice-Presidente GE Energy
U. W. Aschemeier H. C. Nutting/A Terracon Company
H. H. Campbell III Pazazu Engineering
R. V. Clarke Team Industries, Incorporated
L. E. Collins Team Industries, Incorporated
D. A. Dunn PSI
K. R. Fogleman Valmont Industries
M. E. Gase Soil and Materials Engineers, Incorporated
C. W. Hayes The Lincoln Electric Company
R. K. Holbert FMC Technologies Incorporated
T. Huerter PSI
P. G. Kinney Technip USA, Incorporated
S. W. Kopp High Steel Structures, Incorporated
N. S. Lindell Inspectech Consulting and Testing
C. A. Mankenberg Shell International E & P
P. W. Marshal MHP Systems Engineering
D. L. McQuaid D. L. McQuaid & Associates, Incorporated
J. E. Mellinger Pennoni Associates, Incorporated
J. Merrill MACTEC, Incorporated
M. Moles Olympus NDT
J. B. Pearson, Jr. LTK Engineering Services
R. W. Stieve Greenman-Pederson, Incorporated
P. J. Sullivan Massachusetts Department of Transportation (Aposentado)
K. K. Verma Federal Highway Administration
D. G. Yantz Canadian Welding Bureau
Conselheiros do Subcomitê D1Q Grupo de Tarefas emVerificação
W. G. Alexander WGAPE
E. M. Beck MACTEC Engineering & Consulting
F. R. Beckmann Consultor
G. J. Hill G. J. Hill & Associates
M. L. Hoitomt Consultor
J. H. Kiefer ConocoPhillips Company
D. M. Marudas Consultor
W. A. Milek, Jr. Consultor
W. A. Svekric Welding Consultants, Incorporated
Subcomitê D1Q Grupo de Tarefasem Soldagem de Pinos
D. R. Luciani, Presidente Canadian Welding Bureau
U. W. Aschemeier,Vice-Presidente H. C. Nutting/A Terracon Company
H. A. Chambers Consultor
D. A. Dunn PSI
J. Guili Tru-Weld Equipment Company
B. C. Hobson Image Industries
AWS D1.1/D1.1M:2010
xiii
J. E. Koski Stud Welding Products, Incorporated
S. P. Moran PDM Bridge LLC
M. M. Tayarani Massachusetts Department of Transportation
J. L. Uebele Waukesha County Technical College
P. Workman Tru-Weld Equipment Company
Conselheirosdo Subcomitê D1Q Grupo de Tarefas em Soldagem de Pinos
C. B. Champney Nelson Stud Welding
C. C. Pease Consultor
Subcomitê D1F em Reforço e Reparo
N. J. Altebrando, Presidente STV, Incorporated
S. W. Kopp, Vice-Presidente High Steel Structures, Incorporated
S. Morales, Secretary American Welding Society
C. W. Holmes Modjeski & Masters, Incorporated
P. Rimmer New York State Department of Transportation
R. W. Stieve Greenman-Pederson, Incorporated
M. M. Tayarani Massachusetts Department of Transportation
Conselheiros do Subcomitê D1F em Reforço e Reparo
E. M. Beck MACTEC, Incorporated
C. R. Hess High Steel Structures
G. J. Hill G. J. Hill & Associates
M. J. Mayes Mayes Testing Engineers, Incorporated
J. W. Post J W Post & Associates, Incorporated
J. D. Ross U.S. Army Corps of Engineers
R. E. Shaw, Jr. Steel Structures Technology Center, Incorporated
W. A. Thornton Cives Corporation
R. H. R. Tide Wiss, Janney, Elstner Associates
D1M Standing Grupo de Tarefasem Novos Materiais
D. C. Phillips, Presidente Hobart Brothers Company
T. J. Schlafly, Vice-Presidente American Institute of Steel Construction
W. P. Capers Walt Disney World Company
B. Cvijanovic ArcelorMittal International America
C. W. Hayes The Lincoln Electric Company
R. D. Medlock High Steel Structures, Incorporated
D. Rees-Evans Steel Dynamics
Conselheiros to the D1M Standing Grupo de Tarefasem Novos Materiais
B. M. Butler Walt Disney World Company
M. L. Hoitomt Consultor
J. B. Pearson, Jr. LTK Engineering Services
J. W. Post J W Post & Associates, Incorporated
D. D. Rager Rager Consulting, Incorporated
AWS D1.1/D1.1M:2010
xiv
A. W. Sindel Alstom Power
Esta página está em branco intencionalmente.
AWS D1.1/D1.1M:2010
xv
Prefácio
Esse prefácio não é parte do Código de Soldagem Estrutural – Aço, D1.1/D1.1M:2010 da AWS, mas está incluso
apenas para propósito de informação.
A primeira edição do Code for Fusion Welding and Gás Cutting in Building Constructionfoi publicada pela
Sociedade Americana de Soldagem em 1928 e chamada Código 1 Parte A. Ela foi revisada e relançada em 1930 e
1937 sob o mesmo título. Foi revisada novamente em 1941 e recebeu a designação D1.0. D1.0 foirevisado
novamente em 1946, 1963, 1966, e1969. A edição de1963 publicou uma versãocom emendas em 1965, e a edição
de 1966 publicou uma versãocom emendas em 1967. O código foi combinado com D2.0, Specifications for
Welding Highway and Railway Bridges, em 1972, dada a designação D1.1, e renomeado AWS Structural Welding
Code. D1.1 foirevisado novamente em 1975, 1979, 1980, 1981, 1982, 1983, 1984, 1985, 1986, 1988, 1990, 1992,
1994, 1996, 1998, 2000, 2002, 2004, 2006, e 2008. De 1972 a 1988, o código D1.1 abordou a soldagem tanto de
prédios como de pontes. Em 1988, AAWS publicou sua primeira edição do AASHTO/AWS D1.5 Bridge Welding
Code; coincidentemente com isso, o código D1.1 alterou referências de pontes e prédios para estruturas
estaticamente carregadas e dinamicamente carregadas, respectivamente, para tornar o documento aplicável a uma
faixa mais larga de aplicações estruturais. Essa edição de 2010 é a 22ª edição de D1.1.
Texto sublinhado nas subcláusulas, tabelas, ou figuras indica uma alteração editorial ou técnica com relação à
edição de 2008. Uma linhavertical na margem indica uma revisão com relação à edição de 2008.
A seguir está um resumo das revisões técnicas mais significativas contidas no D1.1/D1.1M:2010:
Cláusula 1.7— Revisado para esclarecimento.
Cláusula 2.3.3— Revisado para esclarecimento em limitações ESWe EGW.
Cláusula 3.3 Tabela— Revisões para esclarecer diferenças entre resistências de metal de adição de adaptação e sub-
adaptação.
Cláusula 3.6— Revisado para esclarecer variáveis essenciais pré-qualificadas.
Cláusula 3.7.3— Referência a “ASTM A 588”substituída por “exposição às intempéries.”
Cláusula 3.13.2— Nova seção acrescentada para esclarecer tela protetora pré-qualificada aceitável parasoldas em
chanfro CJP.
Tabela 3.1— Atualizada de acordo com as últimas especificações ASTM, ABS, e API. Adicionada amaterial
ASTM A 709 HPS 50W para Grupo II.
Tabela 3.2— Adicionada a ASTM A 709 Grau HPS 50W para Grupo B.
Tabela 3.3— Excluída nota restringindo seu uso a apenas ASTM A 588 e A 709.
Tabela 3.8— Novatabelaadicionada para esclarecer e listar as variáveis essenciais para WPSs pré-qualificados.
Figuras 3.3 e 3.4 Nota (c)— Revisadas para adaptar-se a comando verbal apropriado em 2.18.2.
Cláusula 4.36.3— Revisada para esclarecer quando novos CVN PQRs e WPSs são necessários.
Tabela 4.9— Adicionado ASTM A 1043 Graus 36 e 50.
Tabela 4.10— Notas (1) e (2) foram excluídas.
Tabela 4.12— Notas (3) e (4) foram excluídas.
Cláusula 5.2.2.2— Revisada para incluir requisitosde barra de prateleira.
Cláusula 5.10.2— Revisada para esclarecer os requisitos para reforço de comprimento completo em aplicações
estaticamente carregadas.
Cláusula 5.15.4.3— Requisitos de rugosidade alterados para adequar-se aos critérios em AWS C4.1.
Cláusula 5.17— Provisões extensivamente revisadas para ajustes de vigase orifícios de acesso. Acrescentada seção
para formas galvanizadas.
Cláusula 5.24— Seção extensivamente revisada para tratar de barras de prateleira e perfis de solda modificados
aceitáveis.
AWS D1.1/D1.1M:2010
xvi
Tabela 5.9— Nova tabela adicionada para esclarecer perfis de solda aplicáveis.
Tabela 5.10— Nova tabela acrescentada para determinar convexidade permissível baseada no programa de
espessura de perfil de solda.
Figura 5.2— Observações e esboço modificado para esclarecer a geometria de orifícios de acesso da braçadeira à
flange.
Figura 5.4— Extensivamente revisada para ilustrar perfis de solda aceitáveis e inaceitáveis para soldas em chanfro
em juntas de topo, juntas de ângulo, juntas em T, juntas sobrepostas, assim como para tratar de soldas em barras de
prateleira.
Cláusula 6.17.7— Modificada para tratar de soldas em canos e reforço de aço.
Cláusula 6.22.7.7— Revisada para cobrir outros blocos tipo IIW.
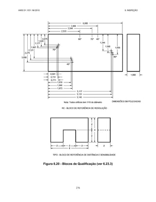
Cláusula 6.23.1— Revisada para permitir o uso de quaisquer blocos UT tipo IIW de acordo com ASTM E 164.
Cláusula 6.29.2.3— Revisada para tratar do número de indicações para blocos UT tipo IIW.
Tabela 6.1(2)— Comando verbal apropriado revisado para esclarecimento sobre fusão aceitável.
Tabela 6.6.— Notas (1) e (2) foramexcluídas databelae incorporadas à Cláusula 6.17.7.
Figura 6.19— Modificada para tratar de blocos tipo IIW típicos.
Cláusula 6.26.6.4— Cálculo para Fator de Atenuação corrigido em unidades SI.
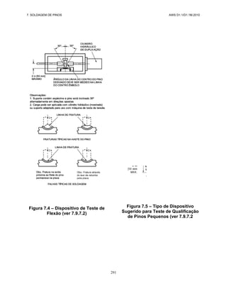
Cláusula 7.2.5— Revisada para especificar defeitos inaceitáveis em acabamentos de pino.
Cláusula 7.2.5.2— Nova seção acrescentada para esclarecer trincas aceitáveis e inaceitáveis em pinos com cabeça.
Tabela 7.1— Observação b modificada para tratar de projeto de ancoragem de concreto.
Figura 7.1— Diâmetros de haste para pinos com cabeça revisados para serem menos restritivos. Também foram
acrescentados pinos 3/8 in [10 mm].
Tabela I.2— Faixa de espessura revisada para incluir 3/8 in [10 mm] e valores métricos corrigidos.
Anexo K— Acrescentados novos termos para “barra de prateleira” e modificado o termo para “NDT” para
relacionar-se apenas ao contexto do código D1.
O termo “soldagem de máquina” foi excluído e substituído pelo termo padrão “soldagem mecanizada” no anexo e
em todo o código. As definições para “tubular” e “cano” também foram modificadas.
Anexo N— Amostras de formulário revisadas para aplicação de soldagem de pinos N-9. O formulário N-3 foi
corrigido.
Cláusula C-3.7.3— Modificada para tratar de aço exposto às intempéries em geral, ao invés de restringir apenas a
ASTM A 588.
C-Tabela 3.8— Novo comentário acrescentado para explicar a Tabela 3.8 em variáveis essenciais pré-qualificadas.
Cláusula C-5.4.1— Nova seção de comentários acrescentada com relação aos processos ESW e EGW.
Cláusula C-5.10.2— Comentário revisado para tratar de descontinuidades no reforço.
Cláusula C- 5.16— Comentário acrescentado com relação aos raios mínimos para cantos reentrantes.
Cláusula C-5.17— Conteúdo do Comentário excluído e movido para a Cláusula C-5.16.
Cláusula C-6.22.7.2— Revisada para explicar parâmetros das Tabelas 6.2 e 6.3.
Cláusula C-6.23— Modificada para esclarecer a permissão do código de blocos tipo IIW.
Cláusula 6.26.6— Comentário acrescentado para explicar técnicas de escaneamento requeridas pelas Tabelas 6.2 e
6.3.
Cláusula C-7.2.5— Novo cálculo acrescentado para determinar o comprimento da trinca ou fenda para pinos com
cabeça.
Figura C-7.1— Nova figura acrescentada ilustrando o cálculo do comprimentoda trinca.
AWS D1.1/D1.1M:2010
xvii
AWS B4.0 Standard Methods for Mechanical Testing of Welds, fornece detalhes adicionais da preparação de
amostra de teste e detalhes da construção da fixação do teste.
Comentário. O Comentário não é obrigatório e tem apenas a intenção de fornecer informações esclarecedoras
sobre a lógica das provisões.
Anexos Normativos. Estes anexos referem-se a assuntos específicos no código e seus requisitos são requisitos
obrigatórios que suplementam as provisões do código.
Anexos Informativos. Estes anexos não são requisitos do código, mas são fornecidos para esclarecer provisões do
código ao mostrar exemplos, fornecendo informações ou sugerindo boas práticas alternativas.
Índice. Como em códigos anteriores, as referências às entradas no Índice são por número de subcláusula e não por
número de página. Isso deve possibilitar ao usuário do Índice localizar um item particular de interesse em tempo
mínimo.
Errata. É Política do Comitê de Soldagem Estrutural que toda errata deveria ser disponibilizada para usuários do
código. Portanto, qualquer errata significativa será publicada na Society News Section of the Welding Journale
postada noweb site da AWS em: http://www.aws.org/technical/d1/.
Sugestões. Seus comentários para a melhoria do Código de Soldagem Estrutural – Aço, D1.1/D1.1M:2010, da
AWS, são bem-vindos. Submeta comentários ao Diretor Executivo, Divisão de Serviços Técnicos, Sociedade
Americana de Soldagem, 550 N. W. LeJeune Road, Miami, FL 33126, EUA; telefone 001 (305) 443-9353; fax 001
(305) 443-5951; e-mail info@aws.org; ou via o web site AWS da <http://www.aws.org>.
AWS D1.1/D1.1M:2010
xviii
Esta página está em branco intencionalmente.
AWS D1.1/D1.1M:2010
xix
Índice
Resumo .................................................................................................................................................................... ii
Dedicatória .....................................................................................................................................................................v
Prefácio ...................................................................................................................................................................xv
Lista de Tabelas................................................................................................................................................................xxv
Lista de Figuras............................................................................................................................................................ xxviii
1. Código de Soldagem Estrutural—Aço ........................................................................................................................1
1.1 Âmbito.........................................................................................................................................................................1
1.2 Limitações...................................................................................................................................................................1
1.3 Definições ...................................................................................................................................................................3
1.4 Responsabilidades .......................................................................................................................................................3
1.5 Aprovação ...................................................................................................................................................................3
1.6 Símbolos de Soldagem ................................................................................................................................................3
1.7 Precauções de Segurança.............................................................................................................................................3
1.8 Unidades Padrão de Medida........................................................................................................................................3
1.9 Documentos de Referência..........................................................................................................................................3
2. Projeto de Conexões Soldadas........................................................................................................................................5
2.1 Âmbito........................................................................................................................................................................5
Parte A—Requisitos Comuns para Projeto de Conexões Soldadas (Membros Tubulares e Não-Tubulares).....................5
2.2 Geral...........................................................................................................................................................................5
2.3 Planos e Especificações de Contrato ..........................................................................................................................5
2.4 Áreas Efetivas ............................................................................................................................................................6
Parte B— Requisitos Específicos para Projeto de Conexões Não-Tubulares
(Carregadas Estaticamente ou Ciclicamente)....................................................................................................................... 8
2.5 Geral...........................................................................................................................................................................8
2.6 Tensões .....................................................................................................................................................................8
2.7 Configuração e Detalhes de Junta...............................................................................................................................9
2.8 Configuração e Detalhes de Junta — Soldas em Chanfro .......................................................................................10
2.9 Detalhes e Configuração de Junta — Juntas de Filete Soldadas...............................................................................10
2.10 Detalhes e Configuração de Juntas – Soldas de Tampão..........................................................................................11
2.11 Placas de Enchimento...............................................................................................................................................11
2.12 Membros Construídos ..............................................................................................................................................12
Parte C—Requisitos Específicos para Projeto de Conexões Não-Tubulares (Carregadas Ciclicamente) ..........................12
2.13 Geral ...................................................................................................................................................................12
2.14 Limitações................................................................................................................................................................12
2.15 Cálculo de Tensões...................................................................................................................................................12
AWS D1.1/D1.1M:2010
xx
2.16 Tensões Permissíveis e Faixas de Tensão.................................................................................................................13
2.17 Detalhamento, Fabricação e Ereção .........................................................................................................................14
2.18 Juntas e Soldas Proibidas..........................................................................................................................................15
2.19 Inspeção ...................................................................................................................................................................15
Parte D—Requisitos Específicos para Projeto de Conexões Tubulares
(Carregadas Estaticamente ou Ciclicamente)......................................................................................................................15
2.20 Geral.........................................................................................................................................................................15
2.21 Tensões Permissíveis................................................................................................................................................15
2.22 Identificação.............................................................................................................................................................16
2.23 Símbolos...................................................................................................................................................................16
2.24 Projeto de Solda .......................................................................................................................................................16
2.25 Limitações de Resistência de Conexões Soldadas....................................................................................................17
2.26 Transição de Espessura.............................................................................................................................................22
2.27 Limitações de Material.............................................................................................................................................22
3. Pré-qualificação de WPSs.............................................................................................................................................59
3.1 Escopo ......................................................................................................................................................................59
3.2 Processos de Soldagem.............................................................................................................................................59
3.3 Combinações de Metal Base / Metal de Adição .......................................................................................................59
3.4 Aprovação do engenheiro para anexos auxiliares.....................................................................................................60
3.5 Requisitos de Temperaturas Mínimas de Pré-aquecimento e Interpasse ..................................................................60
3.6 Limitação de Variáveis de WPS...............................................................................................................................60
3.7 Requisitos Gerais de WPS........................................................................................................................................60
3.8 Requisitos Comuns para SAW de Eletrodos Paralelos e Eletrodos Múltiplos..........................................................61
3.9 Requisitos para Solda de Filete ................................................................................................................................61
3.10 Requisitos para Soldas de Tampão (Soldas Plug e Slot)...........................................................................................61
3.11 Requisitos Comuns de Soldas em Chanfro PJP e CJP..............................................................................................62
3.12 Requisitos de PJP .....................................................................................................................................................62
3.13 Requisitos de Solda em Chanfro com CJP ...............................................................................................................62
3.14 Tratamento Térmico Pós-Soldagem .........................................................................................................................63
4. Qualificação ...........................................................................................................................................................126
4.1 Escopo .....................................................................................................................................................................126
Parte A—Requisitos Gerais ..............................................................................................................................................126
4.2 Geral .................................................................................................................................................................126
4.3 Requisitos Comuns para Qualificação de Desempenho WPS e de Equipe de Soldagem ........................................127
Parte B—Especificação deProcedimento de Soldagem(WPS)..........................................................................................127
4.4 Posições de Soldagem de Produção Qualificadas...................................................................................................127
4.5 Tipo de Testes de Qualificação................................................................................................................................127
4.6 Tipos de Solda para Qualificação WPS ...................................................................................................................127
4.7 Preparação de WPS .................................................................................................................................................127
4.8 Variáveis Essenciais................................................................................................................................................128
4.9 Métodos de Teste e Critérios de Aceitação para Qualificação WPS........................................................................128
4.10 Soldas em Chanfro CJP para Conexões Não Tubulares ..........................................................................................130
4.11 Soldas em Chanfro PJP para Conexões Não Tubulares..........................................................................................130
4.12 Soldas de Filete para Conexões Tubulares e Não Tubulares ...................................................................................130
4.13 Soldas em Chanfro CJP para Conexões Tubulares...................................................................................................131
AWS D1.1/D1.1M:2010
xxi
4.14 Conexões em T-, Y-, ou K- e Juntas de Topo Tubulares PJP ...................................................................................132
4.15 Soldas de Tampão para Conexões Tubulares e Não Tubulares ...............................................................................132
4.16 Processos de Soldagem que Requerem Qualificação...............................................................................................132
4.17 Requisito WPS (GTA
W) ..........................................................................................................................................132
4.18 Requisitos WPS (ESW/EGW) ................................................................................................................................132
Parte C—Qualificação de Desempenho............................................................................................................................133
4.19 Geral........................................................................................................................................................................133
4.20 Tipos de Testes de Qualificação Requeridos ...........................................................................................................133
4.21 Tipos de Solda para Qualificação de Desempenho de Soldador e Operador de Soldagem.......................................134
4.22 Preparação de Formulários de Qualificação de Desempenho ..................................................................................134
4.23 Variáveis Essenciais................................................................................................................................................134
4.24 Soldas em Chanfro CJP para Conexões Não Tubulares..........................................................................................134
4.25 Soldas em Chanfro PJP para Conexões Não Tubulares. ..........................................................................................134
4.26 Soldas de Filete para Conexões Não Tubulares.......................................................................................................134
4.27 Soldas em Chanfro CJP para Conexões Tubulares..................................................................................................134
4.28 Soldas em Chanfro PJP para Conexões Tubulares. .................................................................................................135
4.29 Soldas de Filete para Conexões Tubulares. .............................................................................................................135
4.30 Soldas de Tampão (Plug e Slot) para Conexões Tubulares e Não Tubulares. .........................................................135
4.31 Métodos de Teste e Critérios de Aceitação para Qualificação de Soldador e Operador de Soldagem ....................135
4.32 Método de Teste e Critérios de Aceitação para Qualificação de Soldador Ponteador .............................................136
4.33 Reteste .....................................................................................................................................................................136
Parte D—Requisitos de Teste CVN..................................................................................................................................137
4.34 Geral........................................................................................................................................................................137
4.35 Locais de Teste ........................................................................................................................................................137
4.36 Testes CVN ............................................................................................................................................................137
4.37 Requisitos de Teste.................................................................................................................................................138
4.38 Reteste.....................................................................................................................................................................138
4.39 Relatório..................................................................................................................................................................138
5. Fabricação .................................................................................................................................................................194
5.1 Escopo.....................................................................................................................................................................194
5.2 Metal Base...............................................................................................................................................................194
5.3 Consumíveis de Soldagem e Requisitos de Eletrodo...............................................................................................194
5.4 Processos ESW e EGW..........................................................................................................................................196
5.5 Variáveis WPS. .......................................................................................................................................................196
5.6 Temperaturas de Pré-aquecimento e Interpasse.......................................................................................................197
5.7 Controle de Aporte de Calor para Aços Resfriados e Temperados..........................................................................197
5.8 Tratamento Térmico de Alívio de Tensão. ..............................................................................................................197
5.9 Reforço, Gás de Reforço ou Encaixes. ....................................................................................................................198
5.10 Reforço....................................................................................................................................................................198
5.11 Equipamentos de Corte e Soldagem........................................................................................................................198
5.12 Ambiente de Soldagem............................................................................................................................................198
5.13 Conformidade com o Projeto...................................................................................................................................199
5.14 Tamanhos Mínimos de Solda de Filete...................................................................................................................199
5.15 Preparação de Metal Base........................................................................................................................................199
5.16 Cantos Reentrantes .................................................................................................................................................200
5.17 Orifícios de Acesso de Solda, Ajustes de Viga, e Material de Conexão..................................................................201
5.18 Soldas Provisórias e Soldas para Auxiliar a Construção .........................................................................................201
5.19 Abaulamento em Membros Construídos.................................................................................................................202
AWS D1.1/D1.1M:2010
xxii
5.20 Emendas em Estruturas Ciclicamente Carregadas..................................................................................................202
5.21 Controle de Distorção e Retração............................................................................................................................202
5.22 Tolerância de Dimensões de Juntas .........................................................................................................................202
5.23 Tolerância Dimensional de Membros Estruturais Solda-dos ..................................................................................204
5.24 Perfis de Solda.........................................................................................................................................................206
5.25 Técnica para Soldas de Tampão (Plug e Slot) .........................................................................................................206
5.26 Reparos....................................................................................................................................................................206
5.27 Martelamento ..........................................................................................................................................................207
5.28 Calafetagem.............................................................................................................................................................208
5.29 Aberturas de Arco....................................................................................................................................................208
5.30 Limpeza de Solda....................................................................................................................................................208
5.31 Guias de Solda (Ver 5.2.2) ......................................................................................................................................208
6. Inspeção .................................................................................................................................................................220
Parte A—Requisitos Gerais ..............................................................................................................................................220
6.1 Âmbito 220
6.2 Inspeção de Materiais e Equipamento ....................................................................................................................221
6.3 Inspeção de WPSs ..................................................................................................................................................221
6.4 Inspeção de Qualificações de Soldador, Operador de Soldagem e Soldador Ponteador.........................................221
6.5 Inspeção de Trabalho e Registros...........................................................................................................................221
Parte B—Responsabilidades do Empreiteiro ....................................................................................................................222
6.6 Obrigações do Empreiteiro.....................................................................................................................................222
Parte C—Critérios de Aceitação .......................................................................................................................................222
6.7 Âmbito.....................................................................................................................................................................222
6.8 Aprovação do Engenheiro para Critérios de Aceitação Alternativos.......................................................................222
6.9 Inspeção Visual .......................................................................................................................................................222
6.10 PT e MT...................................................................................................................................................................222
6.11 NDT ........................................................................................................................................................................222
6.12 RT............................................................................................................................................................................223
6.13 UT ...........................................................................................................................................................................224
Parte D—Procedimentos NDT..........................................................................................................................................225
6.14 Procedimentos........................................................................................................................................................225
6.15 Extensão do Teste...................................................................................................................................................226
Parte E—Teste Radiográfico (RT)....................................................................................................................................226
6.16 RT de Soldas em Chanfro em Juntas de Topo........................................................................................................226
6.17 RT Procedimentos..................................................................................................................................................226
6.18 Requisitos RT Suplementares para Conexões Tubulares........................................................................................228
6.19 Exame, Relatório e Disposição de Radiografias.....................................................................................................228
Parte F—Teste de Ultrassonografia (UT) de Soldas em Chanfro.....................................................................................229
6.20 Geral .......................................................................................................................................................................229
6.21 Requisitos de Qualificação. ....................................................................................................................................229
6.22 Equipamento UT ....................................................................................................................................................229
6.23 Padrões de Referência ............................................................................................................................................230
6.24 Qualificação de Equipamento.................................................................................................................................230
6.25 Calibragem para Teste............................................................................................................................................230
6.26 Procedimentos de Teste..........................................................................................................................................231
AWS D1.1/D1.1M:2010
xxiii
6.27 UT de Conexões Tubulares em T-, Y- e K-...........................................................................................................232
6.28 Preparação e Disposição de Relatórios...................................................................................................................234
6.29 Calibragem da unidade de UT com Blocos Tipo IIW ou Outros Blocos de Referência Aprovados (Anexo H)....234
6.30 Procedimentos de Qualificação de Equipamento....................................................................................................235
6.31 Procedimentos de Avaliação de Tamanho de Descontinuidade..............................................................................237
6.32 Padrões de Escaneamento (Ver Figura 6.21)..........................................................................................................237
6.33 Exemplos de Certificação de Precisão dB ..............................................................................................................237
Parte G—Outros Métodos de Exame ................................................................................................................................237
6.34 Requisitos Gerais....................................................................................................................................................237
6.35 Sistemas de Imagem por Radiação.........................................................................................................................237
6.36 Sistemas de Ultrassonografia Avançados...............................................................................................................238
6.37 Requisitos Adicionais..............................................................................................................................................238
7. Soldagem de Pinos.......................................................................................................................................................282
7.1 Escopo ....................................................................................................................................................................282
7.2 Requisitos gerais.....................................................................................................................................................282
7.3 Requisitos mecânicos .............................................................................................................................................283
7.4. Mão de obra/ fabricação .........................................................................................................................................283
7.5 Técnica ...................................................................................................................................................................283
7.6 Requisitos de qualificação de aplicação de pinos...................................................................................................284
7.7. Controle da produção .............................................................................................................................................285
7.8 Requisitos de inspeção de controle e fabricação.....................................................................................................285
7.9 Requisitos do fabricante quanto à qualificação da base do pino.............................................................................286
8. Fortalecendo e Reparando Estruturas Existentes ....................................................................................................292
8.1 Geral .......................................................................................................................................................................292
8.2 Metal Base..............................................................................................................................................................292
8.3 Projeto para Fortalecimento e Reparação ...............................................................................................................292
8.4 Aprimoramento do Tempo de Fadiga.....................................................................................................................293
8.5 Mão-de-Obra e Técnica..........................................................................................................................................293
8.6 Qualidade ...............................................................................................................................................................293
Anexos...............................................................................................................................................................................294
Anexo A (Normativo) —Garganta Efetiva .......................................................................................................................296
Anexo B (Normativo) —Gargantas Efetivas de Soldas de Filete em Juntas Oblíquas em T ............................................298
Anexo D (Normativo)—Aplainamento de Braçadeiras de Trave—Estruturas Estaticamente Carregadas........................302
Anexo E (Normativo)—Aplainamento de Braçadeiras de Trave—Estruturas Ciclicamente Carregadas..........................306
Anexo F (Normativo)—Gráficos de Conteúdo de Temperatura-Umidade........................................................................312
Anexo G (Normativo)—Requisitos de Qualificação de Fabricante de Base de Pinos ......................................................316
Anexo H (Normativo)—Qualificação e Calibragem de Unidades UT com Outros Blocos de Referência Aprovados .....318
Anexo I (Normativo)—Orientação sobre Métodos Alternativos de Determinar Pré-aquecimento ...................................322
Anexo J (Normativo)—Símbolos para Projeto de Solda de Conexão Tubular .................................................................333
Anexo K (Informativo)—Termos e Definições.................................................................................................................335
Anexo L (Informativo)—Guia para Escritores de Especificação ......................................................................................343
Anexo M (Informativo)—Formulários de Inspeção e Qualificação de Equipamento UT.................................................345
Anexo N (Informativo)—Formulários de Amostra de Soldagem .....................................................................................355
Anexo O (Informativo) —Diretrizes para a Preparação de Questões Técnicas para o Comitê de Soldagem Estrutural ..367
Anexo P (Informativo)—Ângulo Diedro Local ................................................................................................................369
Anexo Q (Informativo)—Conteúdos de WPS Pré-qualificado .........................................................................................375
Anexo R (Informativo)—Práticas Seguras........................................................................................................................377
AWS D1.1/D1.1M:2010
xxiv
Anexo S (Informativo)—Exame UT de Soldas por Teste de Ultrassografia - Técnicas Alternativas ...............................381
Anexo T (Informativo)—Parâmetro Oval Alfa.................................................................................................................397
Anexo U (Informativo)—Lista de Documentos de Referência .........................................................................................399
Anexo V (Informativo)—Propriedades de Resistência de Metal de Adição .....................................................................401
Prefácio.............................................................................................................................................................................415
Comentário sobre Código de Soldagem Estrutural-Aço C-1. Requisitos Gerais..............................................................417
Índice remissivo................................................................................................................................................................529
Lista de Documentos da AWS sobre Soldagem Estrutural ................................................. Error! Bookmark not defined.
AWS D1.1/D1.1M:2010
xxv
Lista de Tabelas
2.1 Tamanho Efetivo da Solda em Chanfro Curvado com Preenchimento por Jateamento (ver 2.4.1.4) ....................24
2.2 Dimensão de Perda Z (Não-tubular) (ver 2.4.3.3) ..................................................................................................24
2.3 Tensões Permissíveis (ver 2.6.4 e 2.16.1)...............................................................................................................25
2.4 Coeficientes de Resistência Equivalente para Soldas de Filete Carregadas Obliquamente (ver 2.6.4.4)...............26
2.5 Parâmetros de Projeto de Tensão de Fadiga (ver 2.14.1)........................................ Error! Bookmark not defined.
2.6 Tensão Permissível em Soldas de Conexão Tubular (ver 2.21.3)........................... Error! Bookmark not defined.
2.7 Categorias de Tensão para Tipo e Local de Material para Seções Circulares (ver 2.21.6.2) ..................................27
2.8 Limitações de Categoria de Fadiga no Tamanho ou Espessura da Solda e Perfil de Solda (Conexões Tubulares) 29
2.9 Dimensões de Perda Z para Calcular Tamanhos de Solda Mínimos para Conexões Tubulares Pré-qualificadas
T-, Y-,e K- PJP .......................................................................................................................................................29
2.10 Termos para Resistência de Conexões (Seções Circulares) (ver 2.25.1.1) .............................................................30
3.1 Metal Base Pré-qualificado — Combinações do Metal de Adição para Resistência Correspondente (ver 3.3)......64
3.2 Temperaturas Mínimas Pré-qualificadas de Pré-aquecimento e de Interpasse (ver 3.5).........................................68
3.3 Requisitos do Metal de Adição para Aplicações Expostas, Nuas de Aços Resistentes à Corrosão Atmosférica ....72
3.4 Tamanho de Solda Mínimo Pré-Qualificado de PJP (E) (ver 3.12.2.1) ..................................................................72
3.5 Aplicações do Detalhe de Junta para Conexões Tubulares Pré-qualificadas em T-, Y- e K- com CJP ..................72
3.6 Dimensões de Juntas e Ângulos de Chanfro Pré-qualificados para Soldas em Chanfro com CJP em Conexões
Tubulares em T-, Y- e K- Feitas por meio de SMAW, GMAW-S e FCAW (ver 3.13.5).......................................73
3.7 Requisitos para WPS Pré-qualificadas (ver 3.7).....................................................................................................74
3.8 Variáveis de WPSs Pré-qualificadas.......................................................................................................................75
4.1 Qualificação WPS—Posições de Soldagem de Produção Qualificadas por Testes de Placa,
Cano e Tubo de Caixa ..........................................................................................................................................139
4.2 Qualificação WPS—Soldas em Chanfro CJP: Número e Tipo de Espécimes de Teste e Faixa de Espessura e
Diâmetro Qualificada (ver 4.5) (Dimensões em Polegadas).................................................................................140
4.3 Número e Tipo de Espécimes de Teste e Faixa de Espessura Qualificada - Qualificação WPS;
Soldas em Chanfro PJP.........................................................................................................................................142
4.4 Número e Tipo de Espécimes de Teste e Faixa de Espessura Qualificada - Qualificação WPS;
Soldas de Filete.....................................................................................................................................................142
4.5 Alterações em Variável Essencial de PQR que Requerem Requalificação WPS para SMAW, SAW, GMAW,
FCAW, e GTAW (ver 4.8.1) ................................................................................................................................143
4.6 Alterações Suplementares de Variável Essencial de PQR para Aplicações de Teste CVN que Requerem
Requalificação WPS para SMAW, SAW, GMAW, FCAW, e GTAW ................................................................146
Tabela Núm. de página
AWS D1.1/D1.1M:2010
xxvi
4.7 Alterações de Variável Essencial de PQR que Requerem Requalificação de WPS para ESW ou EGW .............147
4.8 Tabela 3.1, Tabela 4.9, e Aços Não Listados Qualificados por PQR....................................................................148
4.9 Base e Metais de Adição Aprovados pelo Código que Requerem Qualificação pela Cláusula 4 .........................149
4.10 Qualificação de Soldador e Operador de Soldagem—Posições de Soldagem de Produção Qualificadas por Testes
de Placa, Cano e Tubo de Caixa ...........................................................................................................................151
4.11 Qualificação de Soldador e Operador de Soldagem—Número e Tipo de Espécimes e Faixa de Espessura e
Diâmetro Qualificados (Dimensões em Polegadas) .............................................................................................152
4.12 Alteração em Variável Essencial de Desempenho de Equipe de Soldagem que Requer Requalificação..............156
4.13 Grupos de Classificação de Eletrodo (ver Tabela 4.12)........................................................................................156
4.14 Requisitos de Teste CVN (ver 4.36).....................................................................................................................157
4.15 Redução de Temperatura de Teste CVN (ver 4.36.5) Para espécimes de teste CVN de tamanho inferior em que a
largura através do entalhe é menos que 80% da espessura do metal base.............................................................157
5.1 Exposição Atmosférica Permissível de Eletrodos de Baixo Hidrogênio (ver 5.3.2.2 e 5.3.2.3) .........................209
5.2 Tempo Mínimo de Retenção (ver 5.8.1)...............................................................................................................209
5.3 Tratamento Térmico Alternativo de Alívio de Tensão (ver 5.8.2)........................................................................209
5.4 Limites de Aceitabilidade e Reparo de Descontinuidades Laminares em Superfícies Cortadas Produzidas na
Fábrica (ver 5.15.1) ..............................................................................................................................................209
5.5 Tolerâncias de Abertura de Raízes Tubulares (ver 5.22.4.2) ................................................................................210
5.6 Tolerância de Abaulamento para Trave Típica (ver 5.23.3) .................................................................................210
5.7 Tolerância de Abaulamento para Traves sem uma Mísula Concreta Projetada (ver 5.23.4).................................210
5.8 Tamanhos Mínimos de Solda de Filete.................................................................................................................210
5.9 Perfis de Solda......................................................................................................................................................211
5.10 Programas de Perfil de Solda ...............................................................................................................................211
6.1 Critérios de Aceitação de Inspeção Visual ...........................................................................................................240
6.2 Critérios de Aceitação -Rejeição UT ....................................................................................................................241
6.3 Critérios de Aceitação-Rejeição UT .................................................................................................................... 242
6.4 Requisitos IQI de Tipo de Orifício .......................................................................................................................243
6.5 Requisitos IQI de Arame ......................................................................................................................................243
6.6 Seleção e Colocação de IQI..................................................................................................................................244
6.7 Ângulo de Teste....................................................................................................................................................245
7.1 Requisitos de Propriedades Mecânicas para Pinos ...............................................................................................288
7.2 Tamanho Mínimo de Solda de Filete Para Pinos de Pequeno Diâmetro...............................................................288
B.1 Fatores Equivalentes de Tamanho de Perna de Solda de Filete para Juntas Oblíquas em T-................................299
D.1 Reforços Intermediários em Ambos os Lados de Braçadeira ...............................................................................303
D.2 Sem Reforços Intermediários................................................................................................................................303
D.3 Reforços Intermediários em Apenas Um Lado de Braçadeira..............................................................................304
E.1 Reforços Intermediários em Ambos os Lados de Braçadeira. Traves Interiores...................................................307
E.2 Reforços Intermediários em Apenas Um Lado de Braçadeira. Traves Frontais ...................................................308
E.3 Reforços Intermediários em Apenas Um Lado de Braçadeira. Traves Interiores .................................................309
E.4 Reforços Intermediários em Ambos os Lados de Braçadeira. Traves Frontais.....................................................310
E.5 Sem Reforços Intermediários. Traves Frontais ou Interiores................................................................................310
I.1 Grupamento de Índice de Suscetibilidade como Função de Nível de Hidrogênio “H” e
Parâmetro de Composição Pcm ............................................................................................................................326
I.2 Temperaturas Mínimas de Pré-aquecimento e Interpasse para Três Níveis de Restrição (ver I6.2.4) ..................326
AWS D1.1/D1.1M:2010
xxvii
S.1 Critério de Rejeição-Aceitação (ver S12.1) ..........................................................................................................386
C-2.1 Estudo de Limites de Diâmetro/Espessura e Largura/Espessura Chata para Tubos (ver C-2.21.1) ......................438
C-2.2 Fatores de Projeto Sugeridos (ver C-2.25.2).........................................................................................................439
C-2.3 Valores de JD (ver C-2.25.2.5).............................................................................................................................439
C-2.4 Placas de Aço Estrutural (ver C-2.27.2) ...............................................................................................................440
C-2.5 Canos de Aço Estrutural e Moldes Tubulares (ver C-2.27.2) ...............................................................................442
C-2.6 Moldes de Aço Estrutural (ver C-2.27.2)..............................................................................................................442
C-2.7 Matriz de Classificação para Aplicações(ver C-2.27.2)........................................................................................444
C-2.8 Condições de Teste CVN (ver C-2.27.2.2)...........................................................................................................444
C-3.1 Faixas Típicas de Corrente para GMAW-S em Aço.............................................................................................463
C-4.1 Valores de Teste CVN (ver C-4.13.4.4)................................................................................................................473
C-4.2 Valores de Teste CVN HAZ (ver C-4.13.4.4) ......................................................................................................473
C-6.1 Critérios de Aceitação UT para Soldagem 2 in [50 mm], Usando uma Sonda de 70º (ver C-6.13.1)...................504
C-8.1 Guia de Adequação para Soldagem (ver C-8.2.2).................................................................................................519
C-8.2 Relação entre a Espessura da Placa e o Raio da Broca [ver C-8.4.1(2)] ...............................................................519
1. REQUISITOS GERAIS AWS D1.1/D1.1M:2010
xxviii
Lista de Figuras
2.1 Tamanho Máximo de Solda de Filete Ao Longo das Arestas em Juntas Sobrepostas (ver 2.4.2.9)........................31
2.2 Transição de Juntas de Topo em Partes de Espessura Desigual (Não-tubulares Carregadas Estaticamente)..........32
2.3 Transição das Espessuras (Não-tubulares Carregadas Estaticamente) (ver 2.7.5 e 2.8.1)......................................33
2.4 Soldas de Filete Carregadas Transversalmente (ver 2.9.1.2) ..................................................................................33
2.5 Comprimento Mínimo de Soldas de Filete Longitudinais na Extremidade de Membros de Placa ou Barra Chata 34
2.6 Terminação de Soldas Próximo a Arestas Sujeitas a Tensão (ver 2.9.3.2) ............................................................34
2.7 Soldagem de Acabamentoem Conexões Flexíveis (ver 2.9.3.3).............................................................................35
2.8 Soldas de Filete em Lados Opostos de um Plano Comum (ver 2.9.3.5) .................................................................35
2.9 Placas de Enchimento Finas em Junta de Emenda (ver 2.11.1) ..............................................................................36
2.10 Placas de Enchimento Grossas em Junta de Emenda (ver 2.11.2) ..........................................................................36
2.11 Faixa de Tensão Permissível para Carga Aplicada Ciclicamente (Fadiga) em Conexões Não-tubulares (Traçado
Gráfico da Tabela 2.5)............................................................................................................................................37
2.12 Transição da Largura (Não-tubular Carregada Ciclicamente) (ver 2.17.1.2).........................................................38
2.13 Tensão de Fadiga Permissível e Faixas de Deformação para Categorias de Tensão (ver Tabela 2.7), Estruturas
Tubulares Redundantes para Serviço Atmosférico (ver 2.21.6.3)...........................................................................38
2.14 Partes de uma Conexão Tubular (ver 2.22).............................................................................................................39
2.15 Junta Sobreposta Soldada com Filete (Tubular) (ver 2.24.1.3)...............................................................................42
2.16 Raio de Alcance de Solda de Filete em Conexões Tubulares T-, Y-, e K- (ver 2.24.3)........................................42
2.17 Tensão de PuncionamentoPuncionamento(ver 2.25.1.1)........................................................................................43
2.18 Detalhe de Sobreposição de Junta (ver 2.25.1.6)....................................................................................................43
2.19 Limitações para Conexões de Caixaem T-, Y- e K (ver 2.25.2) .............................................................................44
2.20 Conexões Sobrepostas em K(ver 2.25.2.4).............................................................................................................44
2.21 Transição de Espessura de Juntas de Topo em Partes de Espessura Desigual (Tubulares) (ver 2.26) ....................45
3.1 Nó de soldagem em que a profundidade e a largura excedem a largura da face da solda (ver 3.7.2) .....................77
3.2 Juntas tubulares pré-qualificadas de soldagem de filete feitas por meio
de SMAW, GMAW e FCAW (ver 3.9.2) ...............................................................................................................77
3.3 Detalhes de Junta de Solda em Chanfro pré-qualificado de PJP (ver 3.12) (Dimensões em polegadas (in))..........79
3.4 Detalhes de Junta de Solda em Chanfro pré-qualificado de CJP - (ver 3.13) (Dimensões em polegadas)..............95
5.1 Descontinuidades de Aresta em Material de Corte ...............................................................................................211
5.2 Geometria do Orifício de Acesso da Solda...........................................................................................................212
5.3 Tolerâncias de Mão-de-Obra na Montagem de Juntas Soldadas em Chanfro.......................................................213
5.4 Requisitos para Perfis de Solda ............................................................................................................................214
6.1 Critérios de Aceitação de Descontinuidade para Conexões Não Tubulares Estaticamente Carregadas e Conexões
Tubulares Estaticamente ou Ciclicamente Carregadas (ver 6.12.1)......................................................................248
6.2 Critérios de Aceitação de Descontinuidade para Conexões Não Tubulares Ciclicamente Carregadas em Tensão
(Limitações de Porosidade e Descontinuidades de Fusão) (ver 6.12.2.1).............................................................253
6.3 Critérios de Aceitação de Descontinuidade para Conexões Não Tubulares em Compressão
(Limitações de Porosidade ou Descontinuidades do Tipo Fusão) (ver 6.12.2.2) ..................................................258
6.4 Indicações da Classe R (ver 6.13.3.1)...................................................................................................................263
Figura Núm. de página
1. REQUISITOS GERAIS AWS D1.1/D1.1M:2010
xxix
6.5 Indicações da Classe X (ver 6.13.3.2)...................................................................................................................265
6.6 IQI Tipo Orifício (ver 6.17.1)...............................................................................................................................266
6.7 IQI de Arame (ver 6.17.1) ....................................................................................................................................267
6.8 Identificação RT e Locais de Tipo-Orifício ou IQI de Arame em Juntas de Espessura
Aproximadamene Igual a 10 in [250 mm] e Maiores em Comprimento (ver 6.17.7) ..........................................268
6.9 Identificação RT e Locais de Tipo-Orifício ou IQI de Arame em Juntas de Espessura
Aproximadamene Igual ou menores que 10 in [250 mm] em Comprimento (ver 6.17.7)....................................269
6.10 Identificação RT e Locais de Tipo-Orifício ou IQI de Arame em Juntas de Transição
de 10 in [250 mm] e Maiores em Comprimento...................................................................................................270
6.11 Identificação RT e Locais de Tipo-Orifício ou IQI de Arame em Juntas de Espessura
menores que 10 in [250 mm] em Comprimento ...................................................................................................271
6.12 Blocos de Aresta RT (ver 6.17.13) .......................................................................................................................271
6.13 Exposição de Parede Única – Vista de Parede Única (ver 6.18.1.1).....................................................................272
6.14 Exposição de Parede Dupla – Vista de Parede Única (ver 6.18.1.2).....................................................................272
6.15 Exposição de Parede Dupla – Vista de Parede Dupla (Elíptica), Mínimo de Duas Exposições (ver 6.18.1.2) .....273
6.16 Exposição de Parede Dupla – Vista de Parede Dupla (Elíptica), Mínimo de Três Exposições (ver 6.18.1.3) ......273
6.17 Cristal Transdutor (ver 6.22.7.2) ..........................................................................................................................274
6.18 Procedimento de Qualificação da Unidade de Busca Usando Bloco de Referência IIW (ver 6.22.7.7)................274
6.19 Bloco Típico do Tipo IWW (ver 6.23.1) ..............................................................................................................275
6.20 Blocos de Qualificação (ver 6.23.3) .....................................................................................................................276
6.21 Visão de Plano de Padrões de Escaneamento UT (ver 6.32) ................................................................................278
6.22 Técnicas de Escaneamento (ver 6.27.5)................................................................................................................279
6.23 Posições do Transdutor (Típico) (ver 6.29) ..........................................................................................................280
7.1 Dimensões e Tolerâncias de Pinos com Cabeça do Tipo-Padrão (ver 7.2.1).......................................................289
7.2 Suporte de Tese de Tensão Típico (ver 7.3.2) ......................................................................................................289
7.3 Arranjo de Teste de Torque e Tabela de Torques de Teste (ver 7.6.6.2) ..............................................................290
7.4 Dispositivo de Teste de Flexão (ver 7.9.7.2) ........................................................................................................291
7.5 - Tipo de Dispositivo Sugerido para Teste de Qualificação de Pinos Pequenos (ver 7.9.7.2).................................291
F.1 Gráfico de Conteúdo de Temperatura-Umidade a ser Usado em Conjunção com Programa de Teste para
Determinar Tempo Estendido de Exposição Atmosférica de Eletrodos SMAW de Baixo Hidrogênio................313
F.2 Aplicação de Gráfico de Conteúdo de Temperatura-Umidade na Determinação de Tempo de Exposição
Atmosférica de Eletrodos SMAW de Baixo Hidrogênio (ver 5.3.2.3)..................................................................314
H.1 Outros Blocos Aprovados e Posição de Transdutor Típica (ver H2.3.1) ..............................................................320
I.1 Classificação de Zona de Aços (ver I5.1) .............................................................................................................328
I.2 Taxa de Resfriamento Crítica para 350 HV e 400 HV (ver I3.3)..........................................................................328
I.3 Gráficos para Determinar Taxas de Resfriamento para Soldas de Filete SAW de Passe Único (ver I6.1.3) ........329
I.4 Relação Entre Tamanho de Solda de Filete e Entrada de Energia (ver I6.1.5) ....................................................332
S.1 Refletor de Referência Padrão (ver S5) ................................................................................................................387
S.2 Bloco de Calibragem Recomendado (ver S5).......................................................................................................387
S.3 Refletor Típico Padrão (Localizado em Maquetes de Solda e Soldas de Produção) (ver S5)...............................388
S.4 Correção de Transferência (ver S6.1) ...................................................................................................................389
S.5 Profundidade de Onda de Compressão (Calibragem de Varredura Horizontal) (ver S6.2.1)................................389
S.6 Calibragem de Sensibilidade de Onda de Compressão (ver S6.2.2) .....................................................................390
S.7 Calibragem de Sensibilidade e Distância de Onda de Cisalhamento (ver S6.3.1) ...............................................390
S.10 Características de Descontinuidade Cilíndrica (ver S8.2.2)..................................................................................392
S.14 Marcação da Tela de Exibição (ver S11) 21f.......................................................................................................394
S.15 Relatório de UT (Procedimento Alternativo) (ver S13)........................................................................................395
T.1 – Definição de Termos para Alfa Computado .........................................................................................................398
C-2.1 Equilíbrio de Solda de Filete sobre o Ângulo do Eixo Neutro (ver C-2.6.2) .......................................................445
C-2.2 Planos de Cisalhamento para Soldas em Chanfro e de Filete (ver C-2.6.4).........................................................445
C-2.3 Carga Excêntrica (ver C-2.6.4.2 e C-2.6.4.3)........................................................................................................446
C-2.4 Relação de Deformação de Carga para Soldas (ver C-2.6.4.2 e C-2.6.4.3) ..........................................................446
C-2.5 Exemplo de um Grupo de Solda Obliquamente Carregado ..................................................................................447
1. REQUISITOS GERAIS AWS D1.1/D1.1M:2010
xxx
C-2.6 Solução Gráfica da Capacidade de um Grupo de Solda Obliquamente Carregada ...............................................448
C-2.7 Juntas Sobrepostas Soldadas em Solda de Filete Única (ver C-2.9.1.1) ...............................................................449
C-2. Ilustrações de Tensões do Membro de Ramificação Correspondentes ao Modo de Carga (ver C-2.21.6.2).........449
C-2.9 Requisitos de Perfil de Solda Melhorada (ver C-2.21.6.6) ...................................................................................450
C-2.10 Concepção Simplificada de PuncionamentoPuncionamento (ver C-2.25.1.1)......................................................450
C-2.11 Confiabilidade dos Critérios de PuncionamentoPuncionamento Usando Alfa Computado (ver C-2.25.1.1) .......451
C-2.12 Transição entre Folga e Conexões Sobrepostas (ver C-2.25.2.1)..........................................................................452
C-2.13 Teorema do Limite Superior (ver C-2.21.6.2, C-2.25.2, e C-2.27)......................................................................452
C-2.14 Padrões de Linha de Limite (ver C-2.27 e C-2.25.2)............................................................................................453
C-3.1 Oscilógrafos e Esboços de Transferência de Metal de GMAW-S ........................................................................463
C-3.2 Exemplos de Trinca na Linha do Centro (ver C-3.7.2).........................................................................................464
C-3.3 Detalhes de Preparações Alternativas de Chanfro para Juntas de Ângulo Pré-qualificadas (ver C-3.11.2)..........464
C-4.1 Tipo de Soldagem no Cano Que Não Requer Qualificação de Cano (ver Tabela 4.9)..........................................473
C-5.1 Exemplos de Cantos Reentrantes Inaceitáveis (ver C-5.16) .................................................................................484
C-5.2 Exemplos de Boas Práticas para Ajustes de Corte (ver C-5.16) ...........................................................................484
C-5.3 Deslocamento Permissível em Membros Adjacentes (ver C-5.22.3)....................................................................485
C-5.5 Método Típico para Determinar Variações no Nivelamento da Trave da Braçadeira (ver C-5.23.6.1) ................486
C-5.6 Ilustração Mostrando os Métodos de Medição de Abaulamento (ver C-5.23.4)..................................................487
C-5.7 Medição da Inclinação e Deformação da Flange (ver C-5.23.8)...........................................................................488
C-5.8 Tolerâncias nos Pontos de Rolamento (ver C-5.23.10).........................................................................................489
C-6.1 Juntas de Ângulo ou em T de 90º com Reforço de Aço........................................................................................505
C-6.2 Juntas de Ângulo ou Oblíquas em T.....................................................................................................................505
C-6.3 Juntas de Topo com Separação entre Reforço e Junta ..........................................................................................506
C-6.4 Efeito de Abertura da Raiz em Juntas de Topo com Reforço de Aço ...................................................................506
C-6.5 Varredura com Reforço de Aço Soldado por Selagem .........................................................................................507
C-6.6 Resoluções de para Varredura com Reforço de Aço Soldado por Selagem..........................................................507
C-6.7 Ilustração do Critério de Aceitação de Descontinuidade em Conexões Não Tubulares
Estaticamente Carregadas ou Tubulares Ciclicamente Carregadas (ver 6.12.1) ..................................................508
C-6.8 Ilustração dos Critérios de Aceitação de Descontinuidade em Conexões Não Tubulares
Estaticamente Carregadas ou Tubulares Ciclicamente Carregadas de 1-1/8 in [30 mm] e maiores, Típico de
Descontinuidades Randômica Aceitáveis (ver 6.12.1)..........................................................................................509
C-6.9 Ilustração dos Critérios de Aceitação de Descontinuidade em Conexões Não Tubulares
Ciclicamente Carregadas em Tensão (ver 6.12.2.1)..............................................................................................510
C-7.1 Defeitos Permissíveis nas Cabeças dos Pinos com Cabeça ..................................................................................514
C-8.1 Intrusões Microscópicas .......................................................................................................................................520
C-8.2 Tempo de Fadiga (ver C-8.4.1).............................................................................................................................520
C-8.3 Preparação da Extremidade com Esmerilhador de Broca (ver C-8.4.1)................................................................521
C-8.4 Preparação da Extremidade Normal para Tensão (ver C-8.4.1)............................................................................521
C-8.5 Retificação Efetiva da Extremidade (ver C-8.4.1)................................................................................................522
C-8.6 Retificação da Extremidade [ver C-8.4.1(2)]........................................................................................................522
C- 8.7 Martelamento [ver C-8.4.1(3)]..............................................................................................................................523
C-8.8 Refusão da Extremidade [ver C-8.4.1(4)].............................................................................................................524
AWS D1.1/D1.1M:2010
140
1. Código de Soldagem Estrutural—Aço
1 - Requisitos Gerais
1.1 Âmbito
Este código contém os requisitos para fabricar e
erigir estruturas de aço soldadas. Quando este código
é estipulado em documentos de contrato, deve ser
requisitada conformidade com todas as provisões do
código, exceto por aquelas provisões que o
Engenheiro (ver 1.4.1) ou documentos de contrato
especificamente modifiquem ou isentem.
A seguir está um resumo das cláusulas do código:
1. Requisitos Gerais. Essa cláusula contém
informações básicas sobre o âmbito e limitações do
código, definições chave e principais
responsabilidades das partes envolvidas com
fabricação de aço.
2. Projeto de Conexões Soldadas. Essa cláusula
contém requisitos para projeto de conexões soldadas
compostas de produtos membros de forma tubular e
não tubular.
3. Pré-qualificação. Essa cláusula contém os
requisitos para isentar uma WPS (Welding Procedure
Specification – Especificação de Procedimento de
Soldagem) dos requisitos de qualificação de WPS
deste código.
4. Qualificação. Essa cláusula contém os requisitos
para qualificação WPS e os testes de qualificação
requeridos que devem ser passados a toda a equipe
de soldagem (soldadores, operadores de soldagem e
soldadores de solda provisória) para realizar
soldagens de acordo com este código.
5. Fabricação. Essa cláusula contém requisitos
gerais de fabricação e ereção aplicáveis a estruturas
de aço soldadas governadas por este código,
inclusive os requisitos para metais base, consumíveis
de soldagem, técnica de soldagem, detalhes de solda,
preparação e montagem de material, mão-de-obra,
reparo de solda, e outros requisitos.
6. Inspeção. Essa cláusula contém critérios para a
qualificação e responsabilidades de inspetores,
critérios de aceitação para soldas de produção, e
procedimentos padrão para realizar inspeção visual e
NDT (ensaio não-destrutivo).
7. Soldagem de Pinos. Essa cláusula contém os
requisitos para a soldagem de pinos em aço
estrutural.
8. Reforço e Reparo de Estruturas Existentes.
Essa cláusula contém informações básicas
pertinentes à modificação de solda ou reparo de
estruturas de aço existentes.
1.2 Limitações
Este código foi especificamente desenvolvido para
estruturas de aço soldadas que utilizam aço carbono
ou de baixa liga que são 1/8 in [3 mm] ou mais
espessos, com um limite de escoamento específico
mínimo de 100 ksi [690 MPa] ou menos. O código
pode ser conveniente para governar fabricações
estruturais fora do âmbito do objetivo pretendido. No
entanto, o Engenheiro deve avaliar tal conveniência,
e baseado em tais avaliações, incorporar a
documentos de contrato quaisquer alterações
necessárias aos requisitos do código para tratar dos
requisitos específicos da aplicação que está fora do
âmbito do código. O Comitê de Soldagem Estrutural
encoraja o Engenheiro a considerar a aplicabilidade
AWS D1.1/D1.1M:2010 1. REQUISITOS GERAIS
3
de outros códigos D1 da AWS para aplicações
envolvendo alumínio (AWS D1.2), chapa de aço
igual a ou menor que 3/16 em espessura [5 mm]
(AWS D1.3), aço de reforço (AWS D1.4), e aço
inoxidável (AWS D1.6). O AASHTO/AWS D1.5
Bridge Welding Code foi especificamente
desenvolvido para componentes de soldagem de
pontes e é recomendado para essas aplicações.
1.3 Definições
Os termos de soldagem usados nesse código devem
ser interpretados em conformidade com as definições
fornecidas na última edição do Standard Welding
Terms and Definitions, A3.0, da AWS, acrescentado
do Anexo K deste código e das seguintes definições:
1.3.1 Engenheiro. “Engenheiro” deve ser definido
como um indivíduo devidamente designado que age
pelo, e em nome do, Proprietário em todos os
assuntos no âmbito do código.
1.3.2 Empreiteiro. “Empreiteiro” deve ser definido
como qualquer empresa, ou aquele indivíduo
representando uma empresa, responsável pela
fabricação, ereção, manufatura ou soldagem em
conformidade com as provisões deste código.
1.3.3 Inspetores
1.3.3.1 Inspetor do Empreiteiro. “Inspetor do
Empreiteiro” deve ser definido como a pessoa
devidamente designada que age pelo, e em nome do,
Empreiteiro em todas as inspeções e assuntos de
qualidade dentro do âmbito deste código e dos
documentos de contrato.
1.3.3.2 Inspetor de Verificação. “Inspetor de
Verificação” deve ser definido como a pessoa
devidamente designada que age pelo, e em nome do,
Proprietário ou Engenheiro em todas as inspeções e
assuntos de qualidade especificados pelo
Engenheiro.
1.3.3.3 Inspetor(es) (não modificado). Quando
o termo “Inspetor” é usado sem maiores
qualificações com relação às categorias de Inspetor
descritas acima, ele aplica-se igualmente ao Inspetor
de Empreiteiro e Inspetor de Verificação dentro dos
limites da responsabilidade descrita em 6.1.2.
1.3.4 OEM (Original Equipment Manufacturer –
Fabricante do Equipamento Original). “OEM”
deve ser definido como o único Empreiteiro que
assume alguma ou todas as responsabilidades
atribuídas por esse código ao Engenheiro.
1.3.5 Proprietário. “Proprietário” deve ser definido
como o indivíduo ou empresa que exerce a
propriedade legal do produto ou montagem estrutural
produzido sob este código.
1.3.6 Termos do Código “Deve,” “Deveria” e
“Pode.” “Deve,” “deveria” e “pode” têm o seguinte
significado:
1.3.6.1 Deve. Provisões do código que usam
“deve” são obrigatórias a menos que especificamente
modificado em documentos de contrato pelo
Engenheiro.
1.3.6.2 Deveria. A palavra “deveria” é usada
para práticas recomendadas que são consideradas
benéficas, mas não são requisitos.
1.3.6.3 Pode. A palavra “pode” em uma provisão
permite o uso de procedimentos ou práticas
opcionais que podem ser usados como uma
alternativa ou complemento a requisitos do código.
Esses procedimentos opcionais que requerem a
aprovação do Engenheiro devem ou ser
especificados em documentos de contrato ou
requerem a provação do Engenheiro. O Empreiteiro
pode usar qualquer opção sem a aprovação do
Engenheiro quando o código não especifica que a
aprovação do Engenheiro deve ser requisitada.
1.4 Responsabilidades
1.4.1 Responsabilidades do Engenheiro. O
Engenheiro deve ser responsável pelo
desenvolvimento dos documentos de contrato que
governam produtos ou montagens estruturais
produzidas sob este código. O Engenheiro pode
acrescentar, excluir, ou modificar de outra forma os
requisitos deste código para atender aos requisitos
particulares de uma estrutura específica.
Todos os requisitos que modificam este código
devem ser incorporados em documentos de contrato.
O Engenheiro deve determinar a adequação de cada
detalhe de junta a ser usado na montagem soldada.
O Engenheiro deve especificar em documentos de
contrato, conforme necessário e conforme aplicável,
o seguinte:
(1) Requisitos do código que são aplicáveis
apenas quando especificado por um Engenheiro.
(2) Todo NDT adicional que não é
especificamente abordado neste código.
(3) Inspeção de Verificação, quando requisitada
por um Engenheiro.
(4) Critérios de aceitação de solda diferentes dos
especificados na Cláusula 6.
(5) Critérios de tenacidade CVN para metal de
solda, metal base, e/ou HAZ quando requisitado.
(6) Para aplicações não tubulares, seja a estrutura
estatisticamente ou ciclicamente carregada.
1. REQUISITOS GERAIS AWS D1.1/D1.1M:2010
3
(7) Todos os requisitos adicionais que não são
especificamente tratados no código.
(8) Para aplicações OEM, as responsabilidades
das partes envolvidas.
1.4.2 Responsabilidades do Empreiteiro. O
Empreiteiro deve ser responsável pelas qualificações
WPSs da equipe de soldagem, pela inspeção do
Empreiteiro, e por realizar o trabalho em
conformidade com os requisitos deste código e
documentos de contrato.
1.4.3 Responsabilidades do Inspetor
1.4.3.1 Inspeção do Empreiteiro. A Inspeção do
Empreiteiro deve ser fornecida pelo Empreiteiro e
deve ser realizada conforme necessário para
assegurar que materiais e mão-de-obra atendem aos
requisitos dos documentos de contrato.
1.4.3.2 Inspeção de Verificação. O Engenheiro
deve determinar se deve ser realizada Inspeção de
Verificação. Responsabilidades para a Inspeção de
Verificação devem ser estabelecidas entre o
Engenheiro e o Inspetor de Verificação.
1.5 Aprovação
Todas as referências à necessidade de aprovação
devem ser interpretadas como significando
aprovação da Autoridade que tem Jurisdição ou o
Engenheiro
1.6 Símbolos de Soldagem
Símbolos de Soldagem devem ser aqueles mostrados
na última edição de Symbols for Welding, Brazing,
and Nondestructive Examination, A2.4, da AWS.
Condições especiais devem ser completamente
explicadas por notas ou detalhes acrescentados.
1.7 Precauções de Segurança
Questões e preocupações de segurança e saúde estão
além do âmbito desta norma e portanto não são
completamente abordadas aqui. É responsabilidade
do usuário estabelecer práticas apropriadas de saúde
e segurança. Informações sobre saúde e segurança
estão disponíveis em outras fontes, que incluem entre
outros:
(1) ANSI Z49.1, Safety in Welding, Cutting, and
Allied Processes1
(2) Literatura de segurança do fabricante sobre
equipamentos e materiais
(3) Regulamentos federais, estaduais e locais, ou
outros requisitos jurisdicionais
(4) Anexo R Práticas de Segurança
O trabalho feito em conformidade com este código
pode envolver materiais que são considerados
perigosos. O usuário deveria determinar a
aplicabilidade de quaisquer limitações regulatórias
antes do uso.
1.8 Unidades Padrão de Medida
Este padrão faz uso tanto das Unidades Habituais dos
EUA e do Sistema Internacional de Unidades (SI).
As medidas podem não ser exatamente equivalentes;
portanto, cada sistema deve ser usado
independentemente do outro sem combinação de
qualquer forma. O padrão com a designação
D1.1:2010 usa Unidades Habituais dos EUA. A
norma com designação D1.1M:2010 usa Unidades
SI. As últimas são mostradas dentro de colchetes [ ].
1.9 Documentos de Referência
O Anexo U contém uma lista de todos os
documentos referidos neste código.
1
ANSI Z49.1 é publicado pela Sociedade
Americana de Soldagem. 550 N.W. LeJeune
Road, Miami, FL 33126, EUA.
AWS D1.1/D1.1M:2010
4
Esta página está em branco intencionalmente.
AWS D1.1/D1.1M:2010
5
2. Projeto de Conexões Soldadas
2.1 Âmbito
Essa cláusula aborda requisitos para projeto de conexões
soldadas. Ela é dividida em quatro partes como se pode
ver a seguir:
Parte A – Requisitos Comuns para Projeto de Conexões
Soldadas (Membros Tubulares e Não-Tubulares)
Parte B – Requisitos Específicos para Projeto de
Conexões Não-Tubulares (Carregadas Estaticamente ou
Ciclicamente). Os requisitos devem ser aplicados como
complemento dos requisitos da Parte A.
Parte C – Requisitos Específicos para Projeto de
Conexões Não-Tubulares (Carregadas Ciclicamente).
Quando aplicável, os requisitos devem ser aplicados
como complemento aos requisitos das Partes A e B.
Parte D – Requisitos Específicos para Projeto de
Estruturas Tubulares (Carregadas Estaticamente e
Ciclicamente). Quando aplicável, os requisitos devem
ser aplicados como complemento dos requisitos da Parte
A.
Parte A
Requisitos Comuns para Projeto
de Conexões Soldadas
(Membros Tubulares e
Não-Tubulares)
2.2 Geral
Essa parte contém requisitos aplicáveis ao projeto de
todas as conexões soldadas de estruturas tubulares e
não-tubulares, independente de carregamento.
2.3 Planos e Especificações de
Contrato
2.3.1 Plano e Informações de Desenho. Informações
completas a respeito das especificações de metal base,
inclusive designações de local, tipo, tamanho e extensão
de todas as soldas devem estar claramente exibidos nos
panos e especificações de contrato, aqui referidos como
documentos de contrato. Se o Engenheiro requerer que
soldas específicas sejam realizadas no campo, elas
devem estar designadas nos documentos de contrato. Os
desenhos de fabricação e ereção, aqui designados como
desenhos de oficina, devem distinguir claramente entre
soldas de oficina e de campo.
2.3.2 Requisitos de Tenacidade ao Entalhe. Se a
tenacidade ao entalhe de juntas soldadas é requerida, o
Engenheiro deve especificar a energia mínima absorvida
com a temperatura de teste correspondente para a
classificação de metal de adição a ser usada, ou o
Engenheiro deve especificar que as WPSs sejam
qualificadas com testes CVN. Se WPSs com testes CVN
são requeridas, o Engenheiro deve especificar a energia
mínima absorvida, a temperatura de teste e se o
desempenho de teste CVN requerido deve ser em metal
de solda ou tanto em metal de solda quanto HAZ (ver
4.2.1.3 e Cláusula 4, Parte D).
2.3.3 Requisitos Específicos de Soldagem. O
Engenheiro, nos documentos de contrato, e o
Empreiteiro, nos desenhos de oficina, devem indicar
aquelas juntas ou grupos de juntas nas quais o
Engenheiro ou Empreiteiro requisitam uma ordem
específica de montagem, sequência de soldagem, técnica
de soldagem ou outras precauções especiais. Ver 5.4.1 e
C-5.4.1 para limitações na aplicação de soldagem ESW
e EGW.
2.3.4 Tamanho e Comprimento de Solda. Desenhos de
projeto de contrato devem especificar o comprimento
efetivo de solda, e para soldas em chanfro PJP, o
tamanho de solda requerido “(E)”.
Para soldas em filete e juntas oblíquas em T, o seguinte
deve ser fornecido nos documentos de contrato.
(1) Para soldas de filete entre partes com superfícies
que se encontram em um ângulo entre 80° e 100°, os
documentos de contrato devem especificar a perna de
solda da solda de filete.
(2) Para soldas entre partes com as superfícies
encontrando-se em um ângulo menor que 80° ou maior
que 100°, os documentos de contrato devem especificar
a garganta de solda efetiva.
Soldagens de acabamento e retenções para soldas de
filete, se requeridos pelo projeto, devem ser indicados
nos documentos de contrato.
2.3.5 Requisitos de Desenho de Oficina. Os desenhos
de oficina devem indicar claramente por símbolos de
AWS D1.1/D1.1M:2010 2. PROJETO DE CONEXÕES SOLDADAS
6
soldagem ou esboços os detalhes de juntas soldadas em
chanfro e a preparação do metal base requerida para
fazê-los. Tanto a largura como a espessura da tela
protetora de aço devem ser detalhadas.
2.3.5.1 Soldas em Chanfro PJP. Desenhos de
oficina devem indicar as profundidades “S” de solda em
chanfro para atingir o tamanho de solda “(E)” requerido
para o processo de soldagem e posição de soldagem a
ser usada.
2.3.5.2 Soldas de Filete e Soldas em Juntas
Oblíquas em T. O seguinte deve ser fornecido nos
desenhos de oficina:
(1) Para soldas de filete entre partes com superfícies
encontrando-se a um ângulo entre 80° e 100°, desenhos
de oficina devem mostrar o tamanho da perna de solda,
(2) Para soldas entre partes com superfícies
encontrando-se a um ângulo menor que 80° ou maior
que 100°, os desenhos de oficina devem mostrar o
arranjo detalhado de soldas e o tamanho de perna
requerido para efeitos da geometria da junta e, quando
apropriado, a redução de perda Z para o processo a ser
usado e o ângulo,
(3) Soldagens de acabamento e retenções.
2.3.5.3 Símbolos de Soldagem. Os documentos de
contrato devem mostrar requisitos de solda em chanfro
CJP ou PJP. Documentos de contrato não precisam
exibir o tipo de chanfro ou dimensões de chanfro. O
símbolo de soldagem sem dimensões e sem “CJP” no
final designa uma solda CJP como segue:
O símbolo de soldagem sem dimensão e sem CJP na
parte de trás designa uma solda que irá desenvolver a
resistência adjacente do metal base em tensão e
cisalhamento. Um símbolo de soldagem para uma solda
em chanfro PJP deve mostrar dimensões entre
parênteses abaixo “( )” e/ou acima “( )” da linha de
referência para indicar os tamanhos de solda em chanfro
na seta e outros lados da junta de solda, respectivamente,
como mostrado abaixo:
2.3.5.4 Dimensões Pré-qualificadas de Detalhe. Os
detalhes de junta descritos em 3.12 (PJP) e 3.13 (CJP)
têm repetidamente mostrado sua adequação em fornecer
as condições e liberações necessárias para depositar e
fundir metal de solda confiável a metal base. No entanto,
o uso desses detalhes não deve ser interpretado como
implicando consideração dos efeitos do processo de
soldagem em metal base além do limite de fusão, nem
adequação do detalhe de junta a uma dada aplicação.
2.3.5.5 Detalhes Especiais. Quando detalhes
especiais em chanfro são requeridos, eles devem estar
detalhados nos documentos de contrato.
2.3.5.6 Requisitos Específicos de Inspeção.
Quaisquer requisitos específicos de inspeção devem
estar anotados nos documentos de contrato.
2.4 Áreas Efetivas
2.4.1 Soldas em Chanfro
2.4.1.1 Comprimento Efetivo. O comprimento efetivo
máximo de solda de qualquer solda em chanfro, a
despeito da orientação, deve ser a largura da parte
encaixada, perpendicular à direção da resistência
compressiva ou de tração. Para soldas em chanfro Para
soldas em chanfro com transmissão de cisalhamento, o
comprimento efetivo é o comprimento especificado.
2.4.1.2 Tamanho Efetivo de Soldas em Chanfro
CJP. O tamanho de solda de uma solda em chanfro CJP
deve ser a espessura da parte mais fina encaixada. Um
aumento na área efetiva para cálculos de projeto para
reforço de solda deve ser proibido. Os tamanhos de
soldas em chanfro para conexões em T-, Y-, e K em
construção tubular são mostrados na Tabela 3.6.
2.4.1.3 Tamanho Mínimo de Soldas em Chanfro
PJP. Soldas em chanfro PJP devem ser iguais ou
maiores que o tamanho “(E)” especificado em 3.12.2.1 a
menos que o WPS seja qualificado em conformidade
com a Cláusula 4.
2.4.1.4 Tamanho Efetivo de Soldas em Chanfro
Curvado. O tamanho efetivo das soldas em chanfro
curvado quando preenchidas por jateamento deve ser
como mostrado na Tabela 2.1, exceto quando permitido
em 4.11.5. Para soldas em chanfro curvado sem
preenchimento por jateamento, a falta de enchimento U
deve ser deduzida. Para soldas em chanfro em V
curvado para superfícies com diferentes raios R, o
menor R deve ser usado. Para soldas em chanfro
curvado em seções tubulares retangulares, R deve ser
tomado como duas vezes a espessura da parede.
2.4.1.5 Área Efetiva de Soldas em Chanfro. A área
efetiva das soldas em chanfro deve ser o comprimento
efetivo multiplicado pelo tamanho efetivo de solda.
2.4.2 Soldas de Filete
2.4.2.1 Comprimento Efetivo (Reto). O
comprimento efetivo de uma solda de filete reto deve ser
o comprimento geral do tamanho completo de filete,
inclusive soldagens de acabamento. Nenhuma redução
no comprimento efetivo deve ser assumida nos cálculos
de projeto para permitir o início ou fim de uma cratera
de solda. 2.4.2.2 Comprimento Efetivo (Curvo). O
comprimento efetivo de uma solda de filete curvado
deve ser medido ao longo da linha central da garganta
efetiva.
2.4.2.3 Comprimento Mínimo. O comprimento
mínimo de uma solda de filete deve ser pelo menos
quatro vezes o tamanho nominal, ou o tamanho efetivo
AWS D1.1/D1.1M:2010 2. PROJETO DE CONEXÕES SOLDADAS
7
da solda deve ser considerado para não exceder 25% de
seu comprimento efetivo.
2.4.2.4 Soldas de Filete Descontínuas
(Comprimento Mínimo). O comprimento mínimo de
segmentos de uma solda de filete descontínua deve ser
1-1/2 in [38 mm].
2.4.2.5 Comprimento Máximo Efetivo. Para soldas
de filete carregadas na extremidade com um
comprimento de até 100 vezes a dimensão da perna, á
permitido tomar o comprimento efetivo como igual ao
comprimento real. Quando o comprimento da solda de
filete carregada na extremidade excede 100, mas não
mais que 300 vezes o tamanho da solda, o comprimento
efetivo deve ser determinado ao multiplicar o
comprimento real pelo coeficiente de redução .
( )
Onde
= coeficiente de redução
L = comprimento real da solda carregada na
extremidade, in [mm]
w = tamanho da perna de solda, in [mm]
Quando o comprimento excede 300 vezes o tamanho
da perna, o comprimento efetivo deve ser tomado como
180 vezes o tamanho da perna.
2.4.2.6 Cálculo de Garganta Efetiva. Para soldas
de filete entre partes que se encontram em ângulos entre
80° e 100° a garganta efetiva deve ser tomada como a
distância mais curta da raiz da junta à face da junta de
uma solda diagramática de 90° (ver Anexo A). Para
soldas em ângulos agudos entre 60° e 80° e para soldas
em ângulos obtusos maiores que 100°, o tamanho de
perna de solda requerido para fornecer a garganta efetiva
especificada deve ser calculado considerando a
geometria (ver Anexo B). Pra soldas em ângulos agudos
entre 60°e 30°, o tamanho de perna deve ser aumentado
pela dimensão de perda Z para considerar a incerteza de
metal de solda bom no passe de raiz do ângulo estreito
para o processo de soldagem ser usado (ver 2.4.3).
2.4.2.7 Soldas de Filete de Reforço. A garganta
efetiva de uma combinação de solda em chanfro PJP e
uma solda de filete deve ser a distância mais curta da
raiz de junta à face de solda da solda diagramática
menos 1/8 in [3 mm] para qualquer detalhe de solda
requerendo tal dedução (ver Figura 3.3 e Anexo A).
2.4.2.8 Tamanho Mínimo. O tamanho mínimo de
solda de filete não deve ser menor que o tamanho
requerido para transmitir a carga nem que o fornecido
em 5.14.
2.4.2.9 Tamanho Máximo da Solda em Juntas
Sobrepostas. O tamanho máximo da solda de filete
detalhada ao longo das bordas do metal base em juntas
sobrepostas deve ser o seguinte:
(1) a espessura do metal base, para metal menos
espesso que 1/4 in [6 mm] (ver Figura 2.1, Detalhe A).
(2) 1/16 in [2 mm] menos que a espessura do metal
base, para metal 1/4 in [6 mm] ou mais em espessura
(ver Figura 2.1, Detalhe B), a menos que a solda seja
designada no desenho de oficina para ser construída para
obter espessura total de garganta para um tamanho de
perna igual à espessura do metal base. Na condição de
soldagem em bruto, a distância entre a aresta do metal
base e a extremidade da solda pode ser menor que 1/16
in [2 mm] dado que o tamanho da solda seja claramente
verificável.
2.4.2.10 Área Efetiva de Soldas de Filete. A área
efetiva deve ser o comprimento efetivo da solda
multiplicado pala garganta efetiva.
2.4.3 Juntas Oblíquas em T
2.4.3.1 Geral. Juntas em T nas quais o ângulo entre
as partes encaixadas é maior que 100° ou menor que 80°
devem ser definidas como juntas oblíquas em T.
Detalhes pré-qualificados de juntas oblíquas em T são
mostrados na Figura 3.11. Os detalhes de juntas para os
lados agudos e obtusos podem ser usados conjuntamente
ou independentemente dependendo das condições de
serviço e projeto com consideração apropriada para
efeitos de excentricidade.
2.4.3.2 Soldas em Ângulos Agudos entre 80° e 60°
e em Ângulos Obtusos Maiores que 100°. Quando
soldas são depositadas em ângulos entre 80° e 60° ou em
ângulos maiores que 100° os documentos de contrato
devem especificar a garganta efetiva requerida. Os
desenhos de oficina devem mostrar claramente a
colocação de soldas e as dimensões de perna requeridas
para satisfazer a garganta efetiva requerida (ver Anexo
B).
2.4.3.3 Soldas em Ângulos entre 60° e 30°. Quando
a soldagem é necessária em um ângulo que é menor que
60° mas igual ou maior que 30° [Figura 3.11(D)], a
garganta efetiva deve ser aumentada pela compensação
de perda Z (Tabela 2.2). Os documentos de contrato
devem especificar a garganta efetiva requerida. Os
desenhos de oficina devem mostrar as dimensões de
perna requeridas para satisfazer a garganta de solda
requerida, aumentada pela compensação de perda Z
(Tabela 2.2) (ver Anexo B para cálculo de garganta
efetiva).
2.4.3.4 Soldas em Ângulos Menores que 30°.
Soldas depositadas em ângulos agudos menores que 30°
não devem ser considerados como efetivos na
transmissão de forças aplicadas exceto quando
modificados para estruturas tubulares como em 4.13.4.2.
2.4.3.5 Comprimento Efetivo de Juntas Oblíquas
em T. O comprimento efetivo de juntas oblíquas em T
deve ser o comprimento geral do tamanho total da solda.
Nenhuma redução deve ser presumida em cálculo de
projeto para permitir o início ou parada da solda.
AWS D1.1/D1.1M:2010 2. PROJETO DE CONEXÕES SOLDADAS
8
2.4.3.6 Tamanho Mínimo de Solda de Junta
Oblíqua em T. Os requisitos de 2.3.2.8 devem aplicar-
se.
2.4.3.7 Garganta Efetiva de Juntas Oblíquas em
T. A garganta efetiva de uma junta oblíqua em T em
ângulos entre 60° e 30° deve ser a distância mínima da
raiz à face diagramática, menos a dimensão da redução
de perda Z. A garganta efetiva de uma junta oblíqua em
T em ângulos entre 80° e 60° e em ângulos maiores que
100° deve ser tomada como a distância mais curta da
raiz da junta à face de solda.
2.4.3.8 Área Efetiva de Juntas Oblíquas em T. A
área efetiva de juntas oblíquas em T deve ser a garganta
efetiva especificada multiplicada pelo comprimento
efetivo.
2.4.4 Soldas de Filete em Buracos e Ranhuras
2.4.4.1 Limitações de Diâmetro e Largura. O
diâmetro mínimo do buraco ou da largura da ranhura em
que uma solda de filete será depositada não deve ser
menor que a espessura da parte em que é feita mais 5/16
in [8 mm].
2.4.4.2 Extremidades de Ranhuras. Exceto por
aquelas extremidades que se estendem à aresta da parte,
as extremidades da ranhura devem ser semicirculares ou
devem ter as os cantos arredondados para um raio não
menor que a espessura da parte na qual é feita.
2.4.4.3 Comprimento Efetivo de Soldas de Filete
em Buracos ou Ranhuras. Para soldas de filete em
buracos ou ranhuras, o comprimento efetivo deve ser o
comprimento da solda ao longo da linha de centro da
garganta.
2.4.4.4 Área Efetiva de Soldas de Filete em Buracos
ou Ranhuras. A área efetiva deve ser o comprimento
efetivo multiplicado pela garganta efetiva. No caso de
soldas de filete de tal tamanho que elas sobrepõem na
linha de centro quando depositadas em buracos ou
ranhuras, a área efetiva não deve ser tomada como maior
que a área de seção transversal do buraco ou ranhura no
plano da superfície de contato.
2.4.5 Soldas de Tampão
2.4.5.1 Limitações de Diâmetro e Largura. O diâmetro
mínimo do buraco ou a profundidade da ranhura em que
uma solda de tampão deve ser depositada não deve ser
menos que a espessura da parte na qual é feita mais 5/16
in [8 mm.]. O diâmetro máximo do buraco ou largura da
ranhura não deve exceder o diâmetro mínimo mais 1/8
in [3 mm] ou 2-1/4 vezes a espessura da parte, o que for
maior.
2.4.5.2 Comprimento e Forma da Ranhura. O
comprimento da ranhura em que soldas de tampão serão
depositadas não deve exceder dez vezes a espessura da
parte em que é feita. As extremidades da ranhura devem
ser semicirculares ou devem ter os cantos arredondados
para um raio não menor que a espessura da parte em que
é feita.
2.4.5.3 Área Efetiva de Soldas de Tampão. A área
efetiva de soldas de tampão deve ser a área nominal do
buraco ou ranhura no plano da superfície de contato.
2.4.5.4 Profundidade de Enchimento. A profundidade
mínima de enchimento de soldas de tampão deve
atender aos seguintes requisitos:
(1) para soldas de tampão em material com
espessura de 5/8 in [16 mm] ou menos, a espessura do
material.
(2) para soldas de tampão em materiais com
espessura maior que 5/8 in [16 mm], metade da
espessura do material ou 5/8 in [16 mm], o que for
maior.
Em nenhum caso é requisitado que a profundidade
mínima de enchimento seja maior que a espessura da
parte mais fina sendo juntada.
Parte B
Requisitos Específicos para Projeto de
Conexões Não-Tubulares (Carregadas
Estaticamente ou Ciclicamente)
2.5 Geral
Os requisitos específicos da Parte B juntamente com os
requisitos da Parte A devem aplicar-se a todas as
conexões de membros não-tubulares sujeitas a
carregamento estático. Os requisitos das partes A e B,
exceto quando modificados pela parte C, devem aplicar-
se também a carregamento cíclico.
2.6 Tensões
2.6.1 Tensões Calculadas. As tensões calculadas a
serem comparadas com as tensões permissíveis devem
ser tensões nominais determinadas por análise
apropriada ou tensões determinadas a partir dos
requisitos mínimos de resistência da junta que podem
ser especificados nas especificações de projeto
aplicáveis que este código para projeto de conexões
soldadas invoca.
2.6.2 Tensões Calculadas Devidas a Excentricidade.
No projeto de juntas soldadas, a tensão calculada a ser
comparada com tensões permissíveis deve incluir
aquelas devidas a excentricidade, se as houver, em
alinhamento de partes conectadas e a posição, tamanho e
tipo de soldas, exceto o que consta a seguir: para
estruturas estaticamente carregadas, o local de soldas de
filete para equilibrar as forças ao redor do(s) eixo(s)
neutro(s) para conexões de extremidade de ângulo
único, ângulo duplo e membros similares não é
necessário. Em tais membros, arranjos de solda no
calcanhar e ponta de membros de ângulo podem ser
distribuídos para adaptar-se ao comprimento de várias
arestas disponíveis.
2.6.3 Tensões Permissíveis de Metal Base. As tensões
calculadas de metal base não devem exceder as tensões
permissíveis especificadas nas especificações de projeto
aplicáveis.
2.6.4 Tensões Permissíveis de Metal de Solda. As
tensões calculadas na área efetiva de juntas soldadas não
AWS D1.1/D1.1M:2010 2. PROJETO DE CONEXÕES SOLDADAS
9
devem exceder as tensões permissíveis fornecidas na
Tabela 2.3, exceto como permitido por 2.6.4.2, 2.6.4.3, e
2.6.4.4. O uso de 2.6.4.2 deve ser limitado à análise de
uma única solda ou grupo de soldas de filete linear
consistindo de soldas de filete linear paralelas todas
carregadas no mesmo ângulo.
2.6.4.1 Tensão em Soldas de Filete. A tensão em
soldas de filete deve ser considerada como cisalhamento
aplicado à área efetiva para qualquer direção de carga
aplicada.
2.6.4.2 Tensão Permissível Alternativa de Solda
de Filete. Para uma solda de filete linear única ou
grupos de solda de filete consistindo de soldas de filete
linear paralelas todas carregadas no mesmo ângulo e
carregadas em plano através do centro de gravidade do
grupo de solda, a tensão permissível pode ser
determinada pela Fórmula (1):
Fórmula (1) ( )
onde
= unidade de tensão permissível
= número de classificação de eletrodo, isto é,
classificação de resistência de eletrodo
Θ = ângulo entre a direção da força e o eixo do
elemento de solda, graus
2.6.4.3 Centro de Rotação Instantâneo. As tensões
permissíveis em elementos de solda dentro de um grupo
de solda que são carregados em plano e analisados
usando um método instantâneo de centro de rotação para
manter compatibilidade de deformação, e o
comportamento de deformação de carga não linear de
soldas carregadas de ângulo variável, devem ser o
seguinte:
∑
Fv ∑ Fvi
( ) ( )
F( ) ( , , ) , 3
∑ ( ) ( )
onde
= Força interna total na direção x
= Força interna total na direção y
= componente x de tensão
= componente y de tensão
M = Momento de forças internas ao redor do
centro de rotação instantâneo
Ρ = ∆i /∆m taxa de deformação de elemento
“i” a deformação no elemento em tensão
máxima
( ) , deformação de
elemento de solda em tensão máxima, in
[mm]
( ) , < 0,17 W,
deforma-ção de elemento de solda em
tensão de ruptura (fratura), normalmente
em elemen-to mais distante do centro de
rotação instantâneo, in [mm]
W = tamanho de perna na solda de filete, in
[mm]
= deformação de elementos de solda em
níveis de tensão intermediários,
linearmente proporcionado à deformação
crítica baseada em distância do centro de
rotação instantâneo, in [mm] =
.
x = componente de
y = componente de
= distância do centro de rotação
instantâneo para elemento de solda com
taxa mínima , in [mm]
2.6.4.4 Grupos de Solda Concentricamente
Carregados. De forma alternativa, para o caso especial
de um grupo de solda concentricamente carregado, a
tensão permissível de cisalhamento para cada elemento
de solda determinado usando a Fórmula (2) e as cargas
permissíveis de todos os elementos calculados e
adicionados.
Fórmula (2)
onde
= unidade de tensão permissível
= resistência de tração nominal de metal de
adição
= o coeficiente de resistência equivalente
para solda de filete carregadas
obliquamente, escolhidas da Tabela 2.4.
2.6.5 Aumento de Tensão Permissível. Onde as
especificações de projeto aplicáveis permitem o uso de
tensões aumentadas no metal base por qualquer razão,
um aumento correspondente deve ser aplicado às tensões
permissíveis dadas aqui, mas não às faixas de tensão
permitidas por metal base ou metal de solda sujeito a
carregamento cíclico.
2.7 Configuração e Detalhes de
Junta
2.7.1 Considerações Gerais. Conexões soldadas devem
ser projetadas para satisfazer a resistência e rigidez ou
requisitos de flexibilidade das especificações gerais
invocadas.
2.7.2 Conexões e Emendas de Membros de
Compressão
2.7.2.1 Conexões e Emendas Projetadas para
Suportar Conexões que não sejam com a Placa Base.
A menos que especificado de outra forma em
documentos de contrato, emendas de coluna que são
projetadas para suportar devem ser conectadas por
AWS D1.1/D1.1M:2010 2. PROJETO DE CONEXÕES SOLDADAS
10
soldas em chanfro PJP ou por detalhes soldados de filete
suficientes para manter as partes no lugar.
Quando membros de compressão que não sejam colunas
são projetados para suportar soldas de emendas ou
conexões, devem ser projetados para manter todas as
partes em alinhamento e devem ser proporcionadas para
50% da força no membro. Os requisitos das Tabelas 3.4
ou 5.8 devem aplicar-se.
2.7.2.2 Conexões e Emendas Não Projetados para
Suportar Exceto por Conexões a Placas Base. Soldas
que juntem emendas em colunas e emendas e conexões
em outros membros de compressão que não sejam
projetados para suportar devem ser projetadas para
transmitir a força nos membros, a menos que soldas CJP
ou requisitos mais restritivos sejam especificados em
documentos de contrato ou especificações reguladoras.
Os requisitos da Tabela 3.4 ou Tabela 5.8 devem
aplicar-se.
2.7.2.3 Conexões com Placas Base. Em placas base
de colunas e outros membros de compressão, a conexão
deve ser adequada para manter o membro com
segurança no lugar.
2.7.3 Metal Base Através de Carregamento de
Espessura. Em juntas T e de ângulo cuja função é
transmitir tensão normal à superfície de uma parte
conectada, especialmente quando a espessura do metal
base do membro de ramificação ou o tamanho de solda
requerido é 3/4 in [20 mm] ou maior, atenção especial
deve ser dada durante o projeto, seleção de metal base e
detalhamento. Detalhes de junta que minimizam a
intensidade de tensão em metal base sujeito a tensão na
direção através-espessura devem ser usadas quando for
prático. A especificação de tamanhos de solda maiores
que o necessário para transmitir tensão calculada deve
ser evitada.
2.7.4 Combinações de Soldas. Exceto conforme
fornecido aqui, se duas ou mais soldas de tipo diferente
(chanfro, filete, tampão) são combinadas para dividir a
carga em uma conexão simples, a capacidade da
conexão deve ser calculada como a soma das soldas
individuais determinadas com relação à direção da carga
aplicada. Esse método de adicionar capacidades
individuais de soldas não se aplica a soldas de filete
reforçando soldas em chanfro PJP (ver Anexo A).
2.7.5 Superfície de Contorno em Juntas de Topo, de
Ângulo e em T. Soldas de filete podem ser aplicadas
sobre soldas em chanfro CJP e PJP em juntas de topo
juntando partes de largura ou espessura desigual, juntas
de ângulo e em T para o propósito de contornar a face de
solda ou para reduzir concentrações de tensão. Quando
tal superfície contornando soldas de filete é usada em
aplicações carregadas estaticamente, o tamanho precisa
ser mais que 5/16 in [8 mm]. O reforço similar a filete
na superfície de juntas em T e de ângulo de soldas em
chanfro que naturalmente ocorre não deve ser causa de
rejeição nem precisa ser removido contanto que não
interfira com outros elementos da construção. O raio
mínimo de contorno não precisa ser fornecido.
2.7.6 Buracos de Acesso de Solda. Quando buracos de
acesso de solda são requeridos, eles devem ser
dimensionados para fornecer liberação necessária para
deposição de metal de solda bom. Os requisitos de
forma e tamanho de 5.17.1 devem aplicar-se. O
projetista e detalhista devem reconhecer que buracos
com o tamanho mínimo requerido podem afetar a área
máxima líquida disponível no metal base conectado.
2.7.7 Sodas com Rebites ou Parafusos. Conexões que
são soldadas a um membro e parafusadas ou rebitadas a
outro devem ser permitidas. Quando parafusos e soldas
dividem a carga de uma superfície de contato comum, a
compatibilidade de deformação entre os parafusos e
soldas deve ser considerada (ver comentário).
2.8 Configuração e Detalhes de
Junta — Soldas em Chanfro
2.8.1 Transições em Espessuras e Larguras. Para
estruturas estaticamente carregadas, a superfície
contornando as soldas de filete precisa ser fornecida.
Quando superfícies contornando soldas de filete são
requeridas pelo Engenheiro, elas devem ser
especificadas nos documentos de contrato (ver Figura
2.3).
2.8.2 Proibição de Soldas em Chanfro. CJP de
Comprimento Parcial. Soldas em chanfro CJP
descontínuas ou de comprimento parcial devem ser
proibidas a menos que membros construídos de
elementos conectados por soldas de filete possam ter
soldas em chanfro de comprimento limitado em pontos
de aplicação de carga localizada para participar na
transferência de carga localizada. A solda em chanfro
deve estender em tamanho uniforme para pelo menos o
comprimento requerido para transferir a carga. Além
desse comprimento, o chanfro deve ser feito com uma
transição em profundidade a zero sobre uma distância
não menor que quatro vezes sua profundidade. O
chanfro deve ser preenchido por jateamento antes da
aplicação da solda de filete.
2.8.3 Soldas em Chanfro PJP Descontínuas. Soldas
em chanfro PJP descontínuas, bisel curvado e soldas em
chanfro curvado podem ser usadas para transferir tensão
de cisalhamento entre as partes conectadas.
2.8.4 Remoção de Guia de Solda. Para estruturas não-
tubulares estaticamente carregadas, as guias de solda
não precisam ser removidas. Quando a remoção é
necessária, ou quando os requisitos de acabamento da
superfície são outros que os descritos em 5.15.4, os
requisitos devem ser especificados nos documentos de
contrato.
2.9 Detalhes e Configuração de
Junta — Juntas de Filete
Soldadas
2.9.1 Juntas Sobrepostas
2.9.1.1 Soldas de Filete Transversal. Soldas de filete
transversal em juntas sobrepostas transferindo tensão
entre partes carregadas axialmente devem ser soldadas
em filete duplo (ver Figura 2.4) exceto quando a
deflexão da junta é suficientemente retida para evitar a
AWS D1.1/D1.1M:2010 2. PROJETO DE CONEXÕES SOLDADAS
11
abertura sob carga. 2.9.1.2 Sobreposição Mínima. A
sobreposição mínima de partes em juntas sobrepostas
carregando tensão deve ser cinco vezes a espessura da
parte mais fina, mas não menos que 1 in [25 mm]. A
menos que a deflexão fora do plano seja prevenida, elas
devem ser soldadas em filete duplo (ver Figura 2.4) ou
juntas por pelo menos duas linhas transversais de soldas
de tampão ou dois ou mais filetes longitudinais de solda
ou solda de tampão.
2.9.2 Soldas de Filete Longitudinal. Se apenas soldas
de filete longitudinal são usadas em juntas sobrepostas
de conexões de extremidade de barra chata ou membros
de placa, o comprimento de cada solda de filete não
deve ser menor que a distância perpendicular entre elas
(ver Figura 2.5). O espaçamento transversal de soldas de
filete transversal usadas em conexões de extremidade
não deve exceder 16 vezes a espessura da parte mais
fina conectada a menos que provisões adequadas sejam
feitas (como por soldas de tampão intermediárias) para
prevenir flambagem ou separação das partes. As soldas
de filete longitudinal podem ser ou nas arestas dos
membros ou em ranhuras. O projeto de conexões usando
soldas de filete longitudinal para membros que não
sejam seções transversais de barra chata deve ser como
fornecido nas especificações gerais de projeto.
2.9.3 Terminações de Soldas de Filete
2.9.3.1 Geral. Terminações de filete de solda podem
estender-se às extremidades de partes, ou podem ser
interrompidas, ou podem ter soldagens de acabamento,
exceto como limitado pelos seguintes casos:
2.9.3.2 Juntas de Sobreposição Sujeitas a Tensão.
Em juntas de sobreposição em que uma parte estende-se
além da aresta ou lado de uma parte sujeita a tensão de
tração calculada, as soldas de filete devem terminar com
não menos que o tamanho da solda do começo da
extensão (ver Figura 2.6).
2.9.3.3 Comprimento Máximo de Soldagem de
Acabamento. Juntas soldadas devem ser arranjadas para
permitir a flexibilidade assumida no projeto da conexão.
Se as pernas salientes do metal base de conexão são
anexadas a soldas com soldagem de acabamento, o
comprimento da soldagem de acabamento não deve
exceder quatro vezes o tamanho nominal da solda (ver
Figura 2.7 para exemplos de conexões flexíveis).
2.9.3.4 Soldas de Reforço Transversais. Exceto
quando as extremidades de filetes estão soldadas à
flange, soldas de filete juntando reforços transversais a
braçadeiras de trave devem começar ou terminar a não
menos que quarto vezes e não mais que seis vezes a
espessura da braçadeira a partir da extremidade da
braçadeira das soldas braçadeira-a-flange.
2.9.3.5 Lados Opostos de um Plano Comum.
Soldas de filete nos lados opostos de um plano comum
devem ser interrompidos no canto comum a ambas as
soldas (ver Figura 2.8).
2.9.4 Soldas de Filete em Buracos ou Ranhuras.
Soldas de filete em buracos ou ranhuras em juntas
sobrepostas podem ser usados para transferir
cisalhamento ou prevenir flambagem ou separação entre
partes sobrepostas. Espaçamento e dimensões mínimos
de buracos ou ranhuras para soldas de filete devem estar
em conformidade com os requisitos de 2.4.4.1, 2.4.4.2,
2.9.1, 2.9.2, e 2.10. Essas soldas de filete podem
sobrepor sujeitas às provisões de limitação de 2.4.4.4.
Soldas de filete em buracos ou ranhuras não são
consideradas soldas de tampão.
2.9.5 Soldas de Filete Descontínuas. Soldas de filete
descontínuas podem ser usadas para transferir tensão
entre partes conectadas.
2.10 Detalhes e Configuração de
Juntas – Soldas de Tampão
2.10.1 Espaçamento Mínimo (Soldas de Tampão -
Plug). O espaçamento mínimo de centro a centro de
soldas de tampão (plug) deve ser quarto vezes o
diâmetro do buraco.
2.10.2 Espaçamento Mínimo (Soldas de Tampão -
Slot). O espaçamento mínimo de centro a centro de
linhas de soldas de tampão (slot) em uma direção
transversal ao seu comprimento deve ser quatro vezes a
largura da ranhura. O espaçamento mínimo de centro a
centro em uma direção longitudinal deve ser duas vezes
o comprimento da ranhura.
2.10.3 Dimensões Pré-qualificadas. Dimensões para
soldas de tampão pré-qualificadas são descritas em 2.4.5
e 3.10.
2.10.4 Proibição em Aços Resfriados e Temperados.
Soldas de tampão devem ser proibidas em aços
resfriados e temperados com mínimo especificado
maior que 70 ksi [490 MPa].
2.11 Placas de Enchimento
Sempre que for necessário usar placas de enchimento
em juntas requeridas a transferir força aplicada, as
placas de enchimento e as soldas de conexão devem
estar em conformidade com os requisitos de 2.11.1 ou
2.11.2, conforme aplicável.
2.11.1 Placas de Enchimento Finas. Placas de
enchimento com espessura menor que 1/4 in [6 mm] não
devem ser usadas para transferir tensão. Quando a
espessura da placa de enchimento é menor que 1/4 in [6
mm], ou quando a espessura da placa de enchimento é
maior que 1/4 in [6 mm] mas não adequada para
transferir a força aplicada entre as partes conectadas, a
placa de enchimento deve ser mantida flush com a aresta
da parte de for a conectada, e o tamanho da solda deve
ser aumentado sobre o tamanho requerido por uma
quantia igual à espessura da placa de enchimento (ver
Figura 2.9)
2.11.2 Placas de Enchimento Grossas. Quando a
espessura da placa de enchimento é adequada para
transferir a força aplicada entre as partes conectadas, a
placa de enchimento deve estender-se além das arestas
do metal base de fora conectado. As soldas juntando o
metal base de for a conectado à placa de enchimento
AWS D1.1/D1.1M:2010 2. PROJETO DE CONEXÕES SOLDADAS
12
devem ser suficientes para transmitir a força à placa de
enchimento, e a área sujeita à força aplicada deve ser
adequada para evitar excesso de tensão na placa de
enchimento. As soldas juntando a placa de enchimento
ao metal base de dentro conectado deve ser suficiente
para transmitir a força aplicada (ver Figura 2.10).
2.11.3 Requisitos de Desenho de Oficina. Juntas que
requeiram placas de enchimento devem ser
completamente detalhadas em desenhos de oficina e
ereção.
2.12 Membros Construídos
2.12.1 Soldagem Mínima Requerida. Se duas ou mais
placas ou formas laminadas são usados para construir
um membro, soldagem suficiente (do tipo filete ou
tampão) deve ser fornecida para fazer as partes agirem
em uníssono mas não menos que aquela que pode ser
necessária para transmitir a tensão calculada entre as
partes juntadas.
2.12.2 Espaçamento Máximo de Soldas Descontínuas
2.12.2.1 Geral. Exceto conforme pode ser fornecido
por 2.12.2.2 ou 2.12.2.3, o espaçamento máximo
longitudinal de soldas descontínuas conectando um
componente de placa a outros componentes não deve
exceder 24 vezes a espessura da placa mais fina nem
exceder 12 in [300 mm]. O espaçamento longitudinal
entre soldas descontínuas conectando duas ou mais
formas laminadas não deve exceder 24 in [600 mm].
2.12.2.2 Membros de Compressão. Em membros
de compressão construídos, exceto como fornecido em
2.12.2.3, o espaçamento longitudinal de segmentos de
solda de filete ao longo das arestas de um componente
de placa de fora a outros componentes não deve exceder
12 in [300 mm] nem a espessura da placa vezes
√ (Fy = limite de escoamento mínimo
especificado e E é o módulo de elasticidade de Young
para o tipo de aço sendo usado.) Quando segmentos de
solda de filete descontínua são escalonados ao longo de
arestas opostas de um componente de placa de fora mais
estreito que a espessura fornecida pela próxima
sentença, o espaçamento não deve exceder 18 in [460
mm] nem a espessura da placa vezes √ . A
espessura não suportada de web, placa de cobertura, ou
diafragmas, entre linhas adjacentes de soldas, não deve
exceder a espessura da placa vezes √ Quando o
espaçamento transversal não suportado excede esse
limite, mas uma porção de sua espessura não maior que
√ vezes a espessura satisfaria o requisito de
tensão, o membro deve ser considerado aceitável.
2.12.2.3 Aço Não Pintado Exposto às Intempéries.
Para membros de aço não pintado expostos às
intempéries e à corrosão atmosférica, se soldas de filete
descontínuas são usadas, o espaçamento não deve
exceder 14 vezes a espessura da placa mais fina nem 7
in [180 mm].
Parte C
Requisitos Específicos para Projeto
de Conexões Não-Tubulares (Carregadas
Ciclicamente)
2.13 Geral
2.13.1 Aplicabilidade. A Parte C aplica-se apenas a
membros e conexões não-tubulares sujeitos a carga
cíclica, dentro da fase elástica, de frequência e
magnitude suficiente para iniciar trincas e falência
progressiva (fadiga). As provisões da Parte C fornecem
um método para avaliar os efeitos de flutuações
repetidas de tensão em elementos estruturais soldados
não-tubulares, o qual deve ser aplicado para minimizar a
possibilidade de uma falência por fadiga.
2.13.2 Outras Provisões Pertinentes. As provisões
das Partes A e B devem aplicar-se ao projeto de
membros e conexões sujeitos aos requisitos da Parte C.
2.13.3 Responsabilidade do Engenheiro. O
Engenheiro deve fornecer detalhes completos, inclusive
tamanhos de solda, ou deve especificar o ciclo de vida
planejado e a faixa máxima de momentos,
cisalhamentos, e reações para as conexões em
documentos de contrato.
2.14 Limitações
2.14.1 Limite de Faixa de Tensão. Nenhuma avaliação
de resistência de fadiga deve ser requerida se a faixa de
tensão de carga viva for menor que o limite da faixa de
tensão, FTH (ver Tabela 2.5).
2.14.2 Fadiga de Ciclo Baixo. Provisões da Parte C não
são aplicáveis a casos de carga de ciclo baixo que
induzem tensões calculadas para a faixa inelástica de
tensão.
2.14.3 Proteção contra Corrosão. As resistências de
fadiga descritas na Parte C são aplicáveis a estruturas
com proteção contra corrosão adequada, ou sujeitas
apenas a ambientes moderadamente corrosivos tais
como condições atmosféricas normais.
2.14.4 Membros Redundantes-Não-Redundantes.
Este código não reconhece mais uma distinção entre
membros redundantes e não-redundantes.
2.15 Cálculo de Tensões
2.15.1 Análise Elástica. Tensões calculadas e faixas de
tensão devem ser nominais, baseadas em análise elástica
de tensão no nível do membro. As tensões não precisam
ser amplificadas por fatores de concentração de tensão
para descontinuidades geométricas.
AWS D1.1/D1.1M:2010 2. PROJETO DE CONEXÕES SOLDADAS
13
2.15.2 Tensão Axial e Flexão. No caso de tensão axial
combinada com flexão, a tensão máxima combinada
deve ser aquela para casos de carga simultânea aplicada.
2.15.3 Seções Simétricas. Para membros que têm
seções transversais simétricas, as soldas de conexão
devem preferencialmente ser arranjadas simetricamente
sobre o eixo do membro, se o arranjo simétrico não for
prático, as tensões totais, inclusive aquelas resultantes de
excentrici- dade de junta, devem ser incluídas no cálculo
da faixa de tensão.
2.15.4 Membros de Ângulo. Para membros de ângulo
axialmente tensionados, o centro de gravidade das
soldas de conexão deve estar entre a linha de centro de
gravidade da seção transversal do ângulo e o centro da
perna conectada, caso em que os efeitos de
excentricidade podem ser ignorados. Se o centro de
gravidade das soldas de conexão está fora dessa zona, as
tensões totais, inclusive aquelas resultantes de
excentricidade da junta a partir do centro de gravidade
do ângulo, devem ser incluídas no cálculo de faixa de
tensão.
2.16 Tensões Permissíveis e Faixas
de Tensão
2.16.1 Tensões Permissíveis. As unidades de tensões
calculadas em soldas não devem exceder as tensões
permissíveis descritas na Tabela 2.3.
2.16.2 Faixas de Tensão Permissíveis. A faixa de
tensão é definida como a magnitude de flutuação em
tensão que resulta da aplicação repetida e remoção da
carga viva. No caso de reversão de tensão, a faixa de
tensão deve ser computada como a soma numérica das
tensões máximas repetidas de tração e compressão ou a
soma de tensões máximas de cisalhamento de direção
oposta em um dado ponto, resultando de arranjo diverso
de carga viva. A faixa calculada de tensão não deve
exceder o máximo computado por Fórmulas (2) através
de (5), como aplicável (ver Figura 2.11 para diagrama
gráfico de Fórmulas (2) através de (5) para categorias de
tensão A, B, B', C, D, E, E', e F).
Para categorias A, B, B', C, D, E, e E', a faixa de
tensão não deve exceder como determinado pela
Fórmula (2).
Fórmula (2)
( ) ( )
( ) ( )
Nas quais:
= Faixa de tensão permissível, ksi [MPa]
= Constante da Tabela 2.5 para todas as categorias
exceto categoria F.
= Número de ciclos de faixa de tensão vida de
projeto.
= Ciclos por dia × 365 × anos de vida de projeto.
= Faixa limite de tensão de fadiga, que é a faixa
máxima de tensão para vida infinita, ksi [MPa]
Para categoria F de tensão, a faixa de tensão não deve
exceder FSR como determinado pela Fórmula (3).
Fórmula (3)
( ) ( )
( ) ( )
Na qual:
= Constante da Tabela 2.5 para Categoria F
Para elementos de placa carregados por tensão em
detalhes de junta de ângulo, em T e cruciforme com
soldas CJP, soldas PJP, soldas de filete ou combinações
do precedente, transversais à direção de tensão, a faixa
máxima de tensão na seção transversal do elemento de
placa carregado por tensão deve ser determinada por (a),
(b), ou (c) como segue:
(a) Para a seção transversal de um elemento de placa
carregado por tensão, a faixa máxima de tensão na
seção transversal do metal base na ponta da solda
governada por consideração de início de trinca a partir
da ponta da solda, a faixa de tensão não deve exceder
FSR como determinado pela Fórmula (2), Categoria C,
que deve ser igual a:
( ) ( )
( ) ( )
(b) Para conexões de extremidade de elementos de
placa carregados por tensão usando soldas PJP
transversais, com ou sem soldas de filete de reforço ou
contorno, a faixa máxima de tensão na seção transversal
do metal base na ponta da solda governada por
consideração de início de trinca a partir da raiz da solda
não deve exceder FSR como determinado pela Fórmula
(4).
Fórmula (4)
( ) ( )
( ) ( )
Na qual:
= Fator de redução para juntas PJP reforçadas ou
não-reforçadas.
( ⁄ ) ( ⁄ )
1,0 (para in)
AWS D1.1/D1.1M:2010 2. PROJETO DE CONEXÕES SOLDADAS
14
( ⁄ ) ( ⁄ )
1,0 (para mm)
= o comprimento da face de raiz não soldada na
direção da espessura da placa carregada por tensão
= a espessura de elemento de placa carregado por
tensão (in ou mm)
w = o tamanho da perna do filete de reforço ou
contorno, se houver, na direção da espessura das placas
carregadas por tensão (in ou mm)
(c) Para conexões de extremidade de elementos de
placa carregados por tensão usando um par de soldas
de filete, a faixa máxima de tensão na seção transversal
do metal base na ponta da solda governada por
consideração de início de trinca a partir da raiz da solda
devido a tensão na raiz não deve exceder FSR como
determinado pela Fórmula (5). Adicionalmente, a faixa
de tensão de cisalhamento na garganta da solda não deve
exceder FSR pela Fórmula (3) Categoria F.
Fórmula (5)
( ) ( )
( ) ( )
Na qual:
= Fator de Redução para juntas usando apenas
um par de soldas de filete transversais
( ⁄ )
1,0 (para in)
( ⁄ )
1,0 (para mm)
2.17 Detalhamento, Fabricação e
Ereção
2.17.1 Transições em Espessura e Largura
2.17.1.1 Transições de Espessura em Juntas de
Topo. Juntas de topo entre partes que têm espessura
desigual e sujeitas a tensão de tração cíclica devem ter
transições suaves entre superfícies deslocadas a uma
inclinação de não mais que 1 in 2-1/2 com a superfície
de qualquer das partes. A transição pode ser alcançada
ao inclinar as superfícies de solda ao chanfrar a parte
mais espessa, ou por uma combinação dos dois métodos
(ver Figura 2.2).
2.17.1.2 Transições de Largura em Juntas de
Topo. Juntas de topo entre as partes de largura desigual
sujeitas a tensão cíclica em uma faixa de tensão devem
ter uma transição suave entre as arestas deslocadas a
uma inclinação de não mais que 1 in 2-1/2 com a aresta
de qualquer das partes ou devem ser fornecidas com
uma transição tendo um raio mínimo de 24 in [600 mm]
tangente à parte mais estreita no centro da junta de topo
(ver Figura 2.12). Uma faixa aumentada de tensão pode
ser usada para aços que tenham um limite de tensão
maior que 90 ksi [620 MPa] com detalhes incorporando
o raio.
2.17.2 Suporte
2.17.2.1 Soldas para Anexar Reforço de Aço.
Requisitos de soldas para anexar reforço de aço e a
decisão sobre se o reforço deve ser removido ou mantido
no lugar devem ser determinados como descrito em
2.17.2.2, 2.17.2.3, 2.17.2.4, e nas categorias de faixa de
tensão da Tabela 2.5. O Engenheiro deve anotar a
categoria de tensão de fadiga nos desenhos de contrato.
O Empreiteiro deve anotar nos desenhos de oficina a
localização requerida, o detalhe de solda a ser usado,
caso a solda provisória deva ser dentro do chanfro, ou
seja permitido que deva ser for a do chanfro, e caso seja
permitido que o suporte deva ficar no lugar ou caso deva
ser removido para fornecer a categoria de faixa de
tensão pretendida.
2.17.2.2 Juntas de Ângulo e em T CJP Feitas de
Um Lado. Soldas para anexar suporte podem ser dentro
ou fora do chanfro em junta. O suporte para juntas
sujeitas a carregamento de tensão transversal cíclica
(fadiga) deve ser removido e o lado de trás da junta
finalizado de forma consistente com a face da solda.
Qualquer descontinui-dade inaceitável descoberta ou
causada pela remoção deve ser reparada para alcançar os
critérios de aceitação deste código.
2.17.2.3 Emendas de Topo CJP. Soldas para
anexar suporte podem ser dentro ou for a do chanfro a
menos que estejam restritas na descrição de categoria de
tensão. Soldas provisórias localizadas fora do chanfro
em junta não devem terminar mais próximas que 1/2 in
[12 mm] da aresta da parte conectada. O suporte pode
permanecer no lugar ou ser removido a menos que seja
restrito na categoria de tensão usada no projeto.
2.17.2.4 Soldas em Chanfro e Juntas de Ângulo
Longitudinais. Suporte de aço, se usado, deve ser
continuo para todo o comprimento da junta. Soldas para
anexar suporte podem ser dentro ou fora do chanfro (ver
5.10.2).
2.17.3 Solda de Contorno em Juntas de Ângulo e em
T. Em juntas de ângulo e em T transversais sujeitas a
tensão ou tensão devida a flexão, uma solda de filete de
contorno em passe único, com tamanho não menor que
1/4 in [6 mm] deve ser adicionada a cantos reentrantes.
2.17.4 Arestas Cortadas a Chama. Arestas cortadas a
chama não necessitam ser vestidas contanto que estejam
conforme as provisões de rugosidade de 5.15.4.3.
2.17.5 Juntas de Topo Carregadas Transversal-
mente. Para juntas de topo carregadas transversalmente,
abas de solda devem ser usadas para fornecer o
cascateamento da terminação de solda do lado de for a
da junta acabada. Barragens de extremidade não devem
ser usadas. Guias de solda devem ser removidas e a
extremidade da solda finalizada a jateamento com a
aresta do membro.
AWS D1.1/D1.1M:2010 2. PROJETO DE CONEXÕES SOLDADAS
15
2.17.6 Terminações de Solda de Filete. Em acréscimo
aos requisitos de 2.9.3.3 o seguinte aplica-se a
terminações de solda sujeitas a carregamento cíclico
(fadiga). Para conexões e detalhes com forças cíclicas
em elementos salientes de uma frequência e magnitude
que tenderia a causar falência progressiva iniciando em
um ponto de tensão máxima na extremidade da solda,
soldas de filete devem ser retornadas ao redor do lado ou
extremidade para uma distância não menor que duas
vezes o tamanho nominal da solda.
2.18 Juntas e Soldas Proibidas
2.18.1 Soldas em Chanfro de Um Lado. Soldas em
chanfro, feitas de apenas um lado sem suporte ou feitas
com suporte que não seja de aço, que não tenham sido
qualificadas em conformidade com a Cláusula 4 devem
ser proibidas exceto que essas proibições para soldas em
chanfro feitas de um lado não devem aplicar-se ao
seguinte:
(1) Membros secundários ou que não carregam tensão.
(2) Juntas de ângulo paralelas à direção da tensão
calculada entre componentes de membros construídos.
2.18.2 Soldas em Chanfro em Posição Plana. Soldas
de chanfro em bisel e chanfro em J em juntas de topo
soldadas em posição plana devem ser proibidas quando
juntas de chanfro em V ou chanfro em U são possíveis.
2.18.3 Soldas de Filete de Menos que 3/16 in [5
mm].Soldas de filete de menos que 3/16 in [5 mm]
devem ser proibidas.
2.18.4 Soldas CJP em T e em Ângulo com Suporte
Deixado no Lugar. Soldas CJP em T e em ângulo
sujeitas a tensão transversal cíclica com a barra de
suporte deixada no lugar devem ser proibidas.
2.19 Inspeção
As categorias de fadiga B e C requerem que o
Engenheiro certifique-se de que as soldas em chanfro
CJP sujeitas a tensão transversal cíclica aplicada na
faixa de tensão sejam inspecionadas usando RT ou UT.
Parte D
Requisitos Específicos para Projeto de
Conexões Tubulares (Carregadas
Estaticamente ou Ciclicamente)
2.20 Geral
Os requisitos específicos da Parte D aplicam-se apenas a
conexões tubulares, e devem ser usadas como os
requisitos aplicáveis da Parte A. Todas as provisões da
Parte D aplicam-se a aplicações estáticas e aplicações
cíclicas, com exceção das provisões de fadiga de 2.21.6,
que são únicos para aplicações cíclicas.
2.20.1 Excentricidade. Momentos causados por desvios
significativos de conexões concêntricas devem ser
fornecidos na análise e projeto [ver Figura 2.14(H) para
uma ilustração de uma conexão excêntrica].
2.21 Tensões Permissíveis
2.21.1 Tensões de Metal Base. Essas provisões podem
ser usadas em conjunção com quaisquer especificações
de projeto aplicáveis em qualquer dos formatos projeto
de tensão permissível (allowable stress design – ASD)
ou projeto de fator de resistência e carga (LRFD). A
menos que as especificações de projeto aplicáveis
estabeleçam de outra forma, o projeto de conexão
tubular deve ser como descrito em 2.21.5, 2.21.6, e 2.25.
As tensões de metal base devem ser aquelas
especificadas nas especificações de projeto aplicáveis,
com as seguintes limitações:
2.21.2 Limitações de Seção Circular. Limitações em
diâmetro/espessura para seções circulares, e a maior taxa
plana de largura/espessura para seções em caixa, além
da qual ondulação local ou outros modos de falha local
devem ser considerados, devem estar em conformidade
com o código de projeto governante. Limites de
aplicabilidade para os critérios dados em 2.25 devem ser
observados como segue:
(1) tubos circulares: D/t < 3300/√ [para in ksi],
478/ [para in MPa]
(2) conexões de folga de seção de caixa: D/t ≤ 2 / √
[para Fy in ksi], 80/√ [para in MPa] mas não mais
que 35
(3) conexões de sobreposição de seção de caixa: D/t ≤
190/√ [para Fy in ksi], 72/√ [para in MPa]
2.21.3 Tensões de Solda. As tensões permissíveis em
soldas não devem exceder aquelas dadas na Tabela 2.6,
ou como permitido por 2.6.4.2 e 2.6.4.3, exceto como
modificado por 2.21.5, 2.21.6, e 2.25.
2.21.4 Tensões de Fibra. Tensões de fibra devidas a
flexão não devem exceder os valores descritos para
tensão e compressão, a menos que os membros sejam
seções compactas (capaz de desenvolver momento
plástico completo) e qualquer solda transversal é
proporcionada para desenvolver completamente a
resistência de seções juntadas.
2.21.5 Projeto de Fator de Resistência e Carga.
Fatores de resistência, Φ, dados em outro momento
nesta seção, podem ser usados em contexto de cálculo
de projeto de fator de resistência e carga (LRFD) no
seguinte formato:
( ) ∑( )
onde ou é a carga de ruptura ou momento como
dado aqui; e LF é o fator de carga como definido no
código de projeto LRFD governante, por exemplo,
Especificação de Projeto de Fator de Resistência e
Carga para Aço Estrutural em Construções AISC.
AWS D1.1/D1.1M:2010 2. PROJETO DE CONEXÕES SOLDADAS
16
2.21.6 Fadiga
2.21.6.1 Faixa de Tensão e Tipo de Membro. No
projeto de membros e conexões sujeitos a repetidas
variações na tensão de carga viva, deve ser dada
consideração ao número de ciclos de tensão, a faixa
esperada de tensão, e tipo e localização de membro ou
detalhe.
2.21.6.2 Categorias de Tensão de Fadiga. O tipo e
localização de material devem ser categorizados como
mostrado na Tabela 2.7.
2.21.6.3 Limitação Básica de Tensão Permissível.
Quando a especificação de projeto aplicável tem um
requisito de fadiga, a tensão máxima não deve exceder a
tensão básica permissível fornecida em outro lugar, e a
faixa de tensão em um dado número de ciclos não deve
exceder os valores dados na Figura 2.13.
2.21.6.4 Dano Cumulativo. Quando o ambiente de
fadiga envolve faixas de tensão de magnitude variante e
números variados de aplicações, o índice de dano
cumulativo de fadiga, D, somado sobre todas as várias
cargas, não deve exceder unidade, onde
onde
n = número de ciclos aplicados a uma dada faixa de
tensão
N =número de ciclos para os quais a faixa de tensão
dada seria permitida na Figura 2.13
2.21.6.5 Membros Críticos. Para membros críticos cujo
modo de falência em si seria catastrófico, D (ver
2.21.6.4) deve ser limitado a valor fracionário de 1/3.
2.21.6.6 Melhoria de Comportamento de Fadiga. Para
o propósito de comportamento de fadiga melhorado, e
quando especificado em documentos de contrato, as
seguintes melhorias de perfil podem ser tomadas para
soldas em conexões tubulares em T-, Y-, ou K:
(1) Um reforço de subleito pode ser aplicado para
que a superfície soldada em bruto funda-se suavemente
com o metal base adjacente, e aproxime o perfil
mostrado na Figura 3.10. Ranhuras no perfil não devem
ser mais profundas que 0,04 in ou 1 mm, relativas a um
disco que tenha diâmetro igual a ou maior que a
espessura do membro de ramificação.
(2) A superfície da solda pode ser retificada ao perfil
mostrado na Figura 3.10. Marcas finais de retificação
devem ser transversais ao eixo da solda.
(3) A extremidade da solda pode ser martelada com
um instrumento cego, para produzir uma deformação
plástica que suavize a transição entre solda e metal base,
enquanto induz uma tensão compressiva residual. Tal
martelamento deve sempre ser feito após inspeção
visual, e ser seguido por MT como descrito abaixo.
Deve ser considerada a possibilidade de tenacidade ao
entalhe localmente reduzida devido ao martelamento.
Para qualificar categorias de fadiga X1 e K1, soldas
representativas (todas as soldas para estruturas não re-
dundantes ou onde martelamento foi aplicado) devem
receber MT para descontinuidades de superfície e próxi-
mas à superfície. Qualquer indicação que não possa ser
resolvida por retificação leve deve ser reparada em
conformidade com 5.26.1.4.
2.21.6.7 Efeitos de Tamanho e Perfil. A aplicabilidade
de soldas às categorias de fadiga listadas abaixo é
limitada ao seguinte tamanho de solda ou espessura de
metal base:
C1 2 in [50 mm] membro menos espesso na
transição
C2 1 in [25 mm] anexo
D 1 in [25 mm] anexo
E 1 in [25 mm] anexo
ET 1.5 in [38 mm] ramificação
F 0.7 in [18 mm] tamanho de solda
FT 1 in [25 mm] tamanho de solda
Para aplicações que excedem esses limites, deve-se
considerar a redução a redução das tensões permissíveis
ou melhorar o perfil da solda (ver Comentário). Para
conexõesem T-, Y-, e K-, dois níveis de desempenho de
fadiga são fornecidos na Tabela 2.8. O projetista deve
designar quando o Nível I deve-se aplicar, na ausência
de tal designação, e para aplicações em que fadiga não é
uma consideração, o Nível II deve ser o padrão mínimo
aceitável.
2.22 Identificação
Membros em estruturas tubulares devem ser
identificados como mostrado na Figura 2.14.
2.23 Símbolos
Símbolos usados na Cláusula 2, Parte D, são como
mostrados no Anexo J.
2.24 Projeto de Solda
2.24.1 Soldas de Filete
2.24.1.1 Área Efetiva. A área efetiva deve estar em
conformidade com 2.4.2.10 e o seguinte: o comprimento
efetivo de soldas de filete em conexões estruturais T-,
Y-, e K- deve ser calculado em conformidade com
2.24.4 ou 2.24.5, usando o raio ou dimensões de face do
membro de ramificação medido a partir da linha de
centro da solda.
2.24.1.2 Limitação Beta para Detalhes Pré-
qualificados. Detalhes para soldas de filete pré-
qualificadas em conexões tubulares em T-, Y-, e K- são
descritos na Figura 3.2. Esses detalhes são limitados a β
≤ /3 para conexões circulares, e β≤ ,8 para seções de
caixa. Também estão sujeitos às limitações de 3.9.2.
Para uma seção de caixa com raios de ângulo grandes,
AWS D1.1/D1.1M:2010 2. PROJETO DE CONEXÕES SOLDADAS
17
um limite menor em β pode ser necessário para manter o
membro de ramificação e a solda na face plana.
2.24.1.3 Juntas Sobrepostas. Juntas Sobrepostas de
tubos telescópicos (ao contrário de uma junta deslizante
de interferência como as usadas em postes afilados) nas
quais a carga é transferida via solda podem ser soldadas
em filete único em conformidade com a Figura 2.15.
2.24.2 Soldas em Chanfro. A área efetiva deve estar em
conformidade com 2.4.1.5 e o seguinte: o comprimento
efetivo de soldas em chanfro em conexões estruturais T-,
Y-, e K- deve ser calculado em conformidade com
2.24.4 ou 2.24.5, usando o raio médio rm
ou dimensões
de face do membro de ramificação.
2.24.2.1 Detalhes de Soldas em Chanfro PJP Pré-
qualificadas. Soldas em chanfro PJP pré-qualificadas
em conexões tubulares em T-, Y-, ou K- devem estar em
conformidade com a Figura 3.5. O Engenheiro deve usar
a figura em conjunção com a Tabela 2.9 para calcular o
tamanho de solda mínimo para determinar a tensão
máxima de solda exceto quando tais cálculos são
dispensados por 2.25.1.3(2).
A dimensão de perda Z deve ser deduzida da distância
do ponto de trabalho à face teórica da solda para
descobrir o tamanho de solda mínimo.
2.24.2.2 Detalhes de Soldas em Chanfro CJP Pré-
qualificadas Soldadas a partir de Um Lado sem
Suporte nas Conexões em T-, Y-, e K-. Ver 3.13.5
para as opções de detalhe. Se for necessária melhoria no
comportamento de fadiga, os detalhes selecionados
devem ser baseados nos requisitos de perfil de 2.21.6.6 e
Tabela 2.8.
2.24.3 Tensões em Soldas. Quando cálculos de tensão
permissível da solda são necessários para seções
circulares, a tensão nominal na solda que liga
ramificação a corda em uma conexão T-, Y-, ou K-
simples deve ser computado como:
[ ( ) ( ) ]
onde
= espessura de membro de ramificação
= garganta efetiva da solda
e =Tensões nominais de flexão e axial na
ramificação
Para e ver Figura 2.16.
e são comprimento efetivo e fatores de seção
dados em 2.24.4 e 2.24.5.
Em formato de resistência de ruptura ou LRFD, a
seguinte expressão para capacidade de carga axial da
ramificação P deve aplicar-se tanto para seções
circulares como para seções de caixa:
onde = capacidade de carga da linha de solda
(kips/polegada) e Leff = comprimento efetivo de solda.
Para soldas de filete,
com Φ ,8
onde = resistência de tensão mínima classificada
para depósito de solda.
2.24.4 Comprimentos de Conexão Circular.
Comprimento de soldas e comprimento da interseção em
conexõesem T-, Y-, e K- deve ser determinado como
2πr onde r é o raio efetivo da interseção (ver 2.24.2,
2.24.1.1, e 2.25.1.3(4)).
√( )
onde
o ângulo agudo entre os eixos dos dois membros
β razão diâmetro, ramificação/principal, como
definido previamente
OBSERVAÇÃO: O seguinte pode ser usado como
aproximações conservadoras:
para carga axial
para flexão no plano
para flexão fora do plano
2.24.5 Comprimentos de Conexões de Caixa
2.24.5.1 Conexões K- e N-. O comprimento efetivo
de soldas de ramificação em conexões estruturais,
planares, K- e N- de folga entre seções de caixa, sujeito
a carga axial predominantemente estática, deve ser
tomado como:
, para ≤ 5 °
, para ≥ 6 °
Portanto, para ≤ 5 ° o calcanhar, extremidade e lados
da ramificação podem ser considerados completamente
efetivos. Para ≥ 6 °, o calcanhar é considerado não-
efetivo devido à distribuição desigual de carga. Para 50°
< < 6 °, interpolar.
2.24.5.2 Conexões em T-, Y-, e X-. O comprimento
efetivo de soldas de ramificação em conexões
estruturais, planares, T-, Y-, e X- entre seções de caixa,
sujeito a carga axial predominantemente estática, deve
ser tomado como:
, para ≤ 5 °
, para ≥ 6 °
Para 5 ° < < 6 °, interpolar.
2.25 Limitações de Resistência de
Conexões Soldadas
2.25.1 Conexões Circulares T-, Y-, e K- (ver 2.27.1.1)
2.25.1.1 Falha Local. Quando uma conexão T-, Y-,
ou K- é feita ao simplesmente soldar o(s) membro(s) de
AWS D1.1/D1.1M:2010 2. PROJETO DE CONEXÕES SOLDADAS
18
ramificação individualmente ao membro principal,
tensões locais em superfície de falha potencial através
da parede do membro principal podem limitar a
resistência utilizável da junta soldada. A tensão de
cisalhamento na qual tal falha ocorre depende não
apenas da resistência do aço do membro principal, mas
também da geometria da conexão. Tais conexões devem
ser proporcionadas com base em (1)
puncionamentopuncionamento, ou (2) cálculos de carga
de ruptura como dado abaixo.
O puncionamentopuncionamento é um critério de
projeto de tensão permissível (ASD) e inclui o fator de
segurança. O formato de carga de ruptura pode ser usado
no projeto de fator de resistência e carga (LRFD), com o
fator de resistência Φ a ser incluído pelo projetista, ver
2.21.5.
(1) Formato PuncionamentoPuncionamento. A
tensão de puncionamentopuncionamento atuante na
superfície de falha potencial (ver Figura 2.17) não deve
exceder a tensão de puncionamentopuncionamento
permissível.
A tensão de puncionamentopuncionamento atuante é
dada por
A tensão de puncionamentopuncionamento permissível
é dada por
( )
O permissível também deve ser limitado por tensão
de cisalhamento permissível especificada na
especificação de projeto aplicável (por exemplo, 0,4
).
Termos usados nas equações antecedentes são definidos
como segue:
τ, , γ, β e outros parâmetros de geometria de conexão
estão definidos na Figura 2.14(M).
é a tensão nominal axial ( ) ou de flexão ( ) no
membro de ramificação (o
puncionamentopuncionamento para cada uma é mantido
separadamente)
= O limite de escoamento mínimo especificado da
corda do membro principal, mas não mais que 2/3 da
resistência de tensão.
são termos modificador de geometria e de
interação de tensão, respectivamente, dados na Tabela
2.10.
Para flexão sobre dois eixos (por exemplo, y e z), a
tensão de flexão efetiva resultante em seções de caixa
circulares e quadradas pode ser tomada como
√
Para tensões axial e de flexão combinadas, a seguinte
fórmula deve ser satisfeita:
[ ] [ ]
(2) Formato LRFD (cargas fatoradas até a condição
de ruptura—ver 2.20.5)
Cargas de membros de ramificação nas quais a falha da
parede de corda plástica no membro principal ocorre são
dadas por:
[ ]
momento de flexão:
[ ]
Com o fator de resistência Φ ,8.
deve ser computado com redefinido como
( ) ( ) e onde e são
momento e carga de corda fatorados, A é área, S é
modulo de seção.
Essas cargas também estão sujeitas aos limites de
resistência de cisalhamento de material de corda de:
√
√
com Φ , 5
onde
= espessura da parede de corda
= diâmetro do membro de ramificação e outros
termos são definidos como 2.24.1.1(1).
O estado limite para combinações de carga axial P e
momento de flexão M é dado por:
( ) ≤ ,
2.25.1.2 Colapso Geral. A resistência e estabilidade
de um membro principal em uma conexão tubular, com
qualquer reforço, devem ser investigadas usando
tecnologia disponível em conformidade com o código de
projeto aplicável. O colapso geral é particularmente
severo em conexões transversais e conexões sujeitas a
cargas de esmagamento [ver Figura 2.14(G) e (J)]. Tais
conexões podem ser reforçadas ao aumentar a espessura
do membro principal, ou pelo uso de diafragmas, anéis,
ou colares.
(1) Para conexões transversais circulares não
reforçadas, a carga de corda transversal permissível,
devido à carga de compressão axial do membro de
ramificação P, não deve exceder
( )
(2) Para conexões transversais circulares reforçadas
por um “metal de junta” tendo espessura e
comprimento, L,aumentados, a carga axial permissível
de ramificação, P, pode ser empregada como
( ) + [ ( ) ( )] para L < 2,5/D
P = ( ) para L ≥ 2,5/D
onde ( ) é obtido ao usar a espessura nominal do
membro principal na equação em (1); e P(2) é obtido ao
usar a espessura do metal de junta na mesma equação.
AWS D1.1/D1.1M:2010 2. PROJETO DE CONEXÕES SOLDADAS
19
O estado limite final pode ser tomado como 1,8 vezes a
ASD permissível antecedente, com Φ ,8.
(3) Para conexões circulares K- nas quais a
espessura do membro principal requerido a conformar-
se com as provisões de cisalhamento locais de 2.25.1.1
estende-se pelo menos D/4 além das soldas de conexão
do membro de ramificação, colapso geral não precisa ser
verificado.
2.25.1.3 Distribuição Desigual de Carga
(Dimensionamento de Solda)
(1) Devido às diferenças nas flexibilidades relativas
do membro principal carregado de forma normal para
sua superfície, e no membro de ramificação carregando
tensões de membrana paralelas a sua superfície, a
transferência de carga através da solda é altamente não
uniforme, e uma cessão local pode ser esperada antes
que a conexão alcance sua carga de projeto. Para
prevenir “descompactação” ou falha progressiva da
solda e assegurar comportamento dúctil da junta, as
soldas mínimas fornecidas em conexões em T-, Y-, ou
K-simples devem ser capazes de desenvolver, em sua
resistência de ruptura final, o menor limite de
escoamento ou resistência local
(puncionamentopuncionamento) do membro de cinta do
membro principal. A resistência de ruptura final de
soldas de filete e soldas em chanfro PJP deve ser
computada em 2,67 vezes a tensão básica permissível
para 60 ksi [415 MPa] ou 70 ksi [485 MPa] resistência
de tração e em 2,2 vezes a tensão básica permissível
para níveis mais altos de tensão. O
puncionamentopuncionamento final deve ser tomado
como 1,8 vezes o permissível de 2.25.1.1.
(2) Este requerimento pode ser presumivelmente
preenchido pelos detalhes pré-qualificados de junta das
Figuras 3.8 (CJP) e 3.12.4 (PJP), quando materiais
correspondentes (Tabela 3.1) são usados.
(3) Resistência compatível de soldas pode também
ser presumida com os detalhes pré-qualificados de solda
de filete da Figura 3.2, quando os seguintes requisitos de
garganta de solda são preenchidos:
(a) E = 0,7 para projeto de tensão elástica de
trabalho de tubos de aço circulares de aço macio ( ≤
40 ksi [280 MPa] juntados com soldas de
correspondência superada (resistência classificada =
70 ksi [485 MPa])
(b) E = 1,0 tb para projeto de resistência (LRFD)
final de conexões de tubo circulares ou de caixa de aço
moderado, ≤ 4 ksi 28 MPa , com soldas satisfa-
zendo os requisitos de resistência correspondente da
Tabela 3.1.
(c) E = menor de ou 1.07 para todos os
outros casos
(4) Soldas de filete menores que aquelas requeridas
na Figura 3.2 para corresponder à resistência da
conexão, mas dimensionadas apenas para resistir a
cargas de projeto, devem pelo menos ser dimensionadas
para os seguintes múltiplos de tensão calculados por
2.24.3, para considerar distribuição de carga não
uniforme:
ASD LRFD
E60XX e E70XX— 1,35 1,5
Resistências mais altas— 1,60 1,8
2.25.1.4 Transições. Conexões curvadas e
transições de tamanho de tubo que não sejam excetuadas
abaixo devem ser verificadas à procura de tensões locais
causadas pela mudança de direção na transição (ver
Observação d da Tabela 2.7). Exceção, para cargas
estáticas:
Tubos circulares tendo D/t menor que 30, e
Inclinação de transição menor que 1:4.
2.25.1.5 Outras Configurações e Cargas
( ) O termo “conexões em T-, Y-, e K-” é
frequentemente usado de forma genérica para descrever
conexões tubulares nas quais os membros de
ramificação são soldados a um membro principal, ou
corda, em um nó estrutural. Critérios específicos
também são dados para conexões transversais (X-)
(também conhecidas como duplo T) em 2.25.1.1 e
2.25.1.2. Conexões N- são um caso especial de conexões
K- nas quais uma das ramificações é perpendicular à
corda; os mesmos critérios aplicam-se (ver Comentário
sobre conexões multiplanares).
(2) Classificações de conexão como em T-, Y-, K-,
ou transversal deveriam aplicar-se a membros de
ramificação individuais de acordo com o padrão de
carga para cada caso de carga. Para ser considerada uma
conexão K-, a carga de perfuração em um membro de
ramificação deveria ser essencialmente equilibrada por
cargas em outras cintas no mesmo plano no mesmo lado
da junta. Em conexões em T- e Y-, a carga de perfuração
é reagida como viga ao cisalhamento na corda. Em
conexões transversais a carga de perfuração é carregada
através da corda para cintas no lado oposto. Para
membros de ramificação que carregam parte de sua
carga como conexões em K-, e parte como conexões em
T-, Y-, ou transversais, interpolar baseado na porção de
cada no total, ou usar alfa computado (ver Comentário).
(3) Para conexões multiplanares, o alfa computado
como dado no Anexo T pode ser usado para estimar o
efeito benéfico ou prejudicial de várias cargas de
membros de ramificação na ovalização do membro
principal. No entanto, para conexões similarmente
carregadas em planos adjacentes, por exemplo, conexões
pareadas TT e KK em estruturas delta, nenhum aumento
na capacidade além daquela das conexões uniplanares
correspondentes deve ser realizado.
2.25.1.6 Conexões de Sobreposição. Juntas de
sobreposição, nas quais parte da carga é transferida
diretamente de um membro de ramificação para outro
através de sua solda comum, devem incluir as seguintes
verificações:
(1) O componente de carga permissível do membro
individual, P⊥ perpendicular ao eixo do membro
principal deve ser tomado como P⊥ = ( ) +
AWS D1.1/D1.1M:2010 2. PROJETO DE CONEXÕES SOLDADAS
20
( ) onde é o puncionamentopuncionamento
permissível como definido em 2.25.1.1, e
= a espessura do membro principal
= comprimento real de solda para aquela
porção do membro de ramificação que fica
em contato com o membro principal
= puncionamentopuncionamento permissível
para o membro principal como conexão K-
(α , )
= tensão de cisalhamento permissível para a
solda entre membros de ramificação (Tabela
2.6)
= o menor tamanho de solda (garganta efetiva)
ou a espessura tb do membro de ramificação
mais fino
= o comprimento projetado de corda (um lado) da
solda de sobreposição, medido
perpendicularmente ao membro principal.
Esses termos são ilustrados na Figura 2.18.
O estado limite final pode ser tomado como 1,8 vezes a
ASD permissível antecedente, com Φ ,8.
(2) O componente de carga combinada permissível
paralelo ao eixo do membro principal não deve exceder
, onde é a soma dos comprimentos reais
de solda para todas as cintas em contato com o membro
principal.
(3) A sobreposição deve ser preferencialmente
proporcionada para pelo menos 50% do P⊥ atuante. A
espessura da parede do membro de ramificação nunca
deve exceder a espessura da parede do membro
principal.
(4) Quando o membro de ramificação carrega cargas
substancialmente diferentes, ou um membro de
ramificação tem uma espessura de parede maior que a de
outro, ou ambos, o membro de ramificação mais grosso
ou mais carregado deve preferencialmente ser o membro
conectado com sua circunferência completa soldada ao
membro principal.
(5) A carga transversal líquida da área de cobertura
combinada deve satisfazer 2.25.1.1 e 2.25.1.2.
(6) Tamanho mínimo de solda para soldas de filete
devem fornecer garganta efetiva de 1,0 para < 40
ksi [280 MPa], 1,2 tb para Fy > 40 ksi [280 MPa].
2.25.2 Conexões de Caixa T-, Y, e K- (ver 2.27.1.1).
Os critérios dados nessa seção são todos em formato de
carga de ruptura, com o fator de segurança removido.
Fatores de resistência para LRFD são dados
completamente. Para ASD, a capacidade permissível
deve ser a capacidade de ruptura, dividida por um fator
de segurança de 1,44/Φ. A escolha de cargas e fatores de
carga deve estar em conformidade com a especificação
de projeto vigente; ver 2.6.5 e 2.21.5. As conexões
devem ser verificadas para cada um dos modos de falha
descritos abaixo.
Esses critérios são para conexões entre seções de caixa
de espessura de parede uniforme, em estruturas planares
em que as cargas dos membros de ramificação são
primariamente axiais. Se seções compactas, material
dúctil, e soldas de resistência compatível são usados, a
flexão secundária do membro de ramificação pode ser
omitida. (Flexão secundária é aquela devida a
deformação ou rotação da junta em estruturas
inteiramente trianguladas. Flexão do membro de
ramificação devido a cargas aplicadas, laterais de
molduras sem cinta, etc., não podem ser omitidos e
devem ser considerados no projeto (ver 2.25.2.5).
Os critérios nessa seção estão sujeitos às limitações
mostradas na Figura 2.19.
2.25.2.1 Falha Local. Carga axial do membro de
ramificação Pu na qual a ocorrência de falha plástica na
parede da corda no membro principal é dada por:
[
√
]
para conexões transversais, em T- e Y- com ,25 ≤ β <
,85 e Φ , .
Também, √
com Φ ,
para conexões de folga K- e N- com menos
≥ , + e g/D ζ ≥ ,5 ( –β)
onde é o limite de escoamento mínimo especificado
do membro principal, é espessura de parede de corda,
γ é D/2 (D largura da face da corda); β, η, , e ζ são
parâmetros de topologia de conexão como definido na
Figura 2.14 (M) e Figura C-2.26; ( é β equivalente
definido abaixo); e =1,3– .4U/β ( ≤ , ); use =
1,0 (para corda em tensão) com U sendo a razão de
utilização da corda.
| | | |
(
)
Essas cargas também estão sujeitas aos limites de
resistência de cisalhamento de material de corda de
( √ )
para conexões transversais, em T- ou Y- com β > .85,
usando Φ , 5, e
( √ )
Para conexões de folga em K- e N- com β ≥ , + γ/5 ,
usando Φ , 5 (essa verificação é desnecessária se os
membros de ramificação são quadrados e de espessura
igual), onde
β para conexões em K- e N- com ζ ≤ ,5 ( –β)
= para todas as outras conexões
(puncionamento externo efetivo) 5β/γ
AWS D1.1/D1.1M:2010 2. PROJETO DE CONEXÕES SOLDADAS
21
Mas não mais que β
2.25.2.2 Colapso Geral. Resistência e estabilidade
de um membro principal em uma conexão tubular, com
qualquer reforço, devem ser investigadas usando
tecnologia disponível em conformidade com o código de
projeto aplicável.
(1) O colapso geral é particularmente severo em
conexões transversais e conexões sujeitas a cargas de
esmagamento. Tais conexões podem ser reforçadas ao
aumentar a espessura do membro principal ou pelo uso
de diafragmas, cantoneiras, ou colares.
Para conexões de caixa correspondentes não reforçadas,
a carga final para o membro principal (corda) devido a
carga axial de ramificação P deve ser limitada a:
( )
com Φ , para cargas de tensão,
e Φ ,8 para compressão.
e
√ ( )
com Φ ,8 para conexões transversais, reações pós
extremidade, etc., em compressão, e E = módulos de
elasticidade
ou
√ ( )
com Φ ,75 para todas as outras cargas de compressão
de ramificação
(2) Para conexões de folga em K- e N-, a adequação
da viga ao cisalhamento do membro principal para
carregar cargas transversais através da região de folga
deve ser verificada incluindo interação com forças de
corda axial. Essa verificação não é necessária para U ≤
0,44 in conexões de caixa escalonadas tendo β + η ≤
H/D (H é altura do membro principal no plano de
estrutura).
2.25.2.3 Distribuição Desigual de Carga (Largura
Efetiva). Devido a diferenças nas flexibilidades relativas
do membro principal carregado de forma normal para
sua superfície e no membro de ramificação carregando
tensões de membrana paralelas a sua superfície, a
transferência de carga através da solda é altamente não
uniforme, e cessão local pode ser esperada antes que a
conexão alcance sua carga de projeto. Para prevenir
falha progressiva e garantir comportamento dúctil da
junta, tanto os membros de ramificação como a solda
devem ser verificados como segue:
(1) Verificação do Membro de Ramificação. A
capacidade axial de largura efetiva Pu do membro de
ramificação deve ser verificada para todas as conexões
de folga em K- e N-, e outras conexões tendo β > ,85.
(Observe que essa verificação é desnecessária se os
membros de ramificação são quadrados e de largura
igual.)
[ ]
com Φ = 0,95
onde
= limite de escoamentolimite de
escoamento mínimo especificado da
ramificação
= espessura da parede de ramificação
a, b = dimensões de ramificação [ver Figura
2.14(B)]
= b para conexões em K- e N- com ζ ≤ ,5
(1–β)
= para todas as outras conexões
( )
OBSERVAÇÃO: τ ≤ , e ≤ são presumidos.
(2) Verificações de Solda. As soldas mínimas
fornecidas em conexões em T-, Y-, ou K- simples
devem ser capazes de desenvolver, em sua resistência de
ruptura final, o menor limite de escoamentolimite de
escoamento ou resistência local no membro de
ramificação do membro principal.
Esse requerimento pode ser presumivelmente
preenchido pelos detalhes pré-qualificados de junta da
Figura 3.6 (CJP e PJP), quando materiais
correspondentes (Tabela 3.1) são usados,
(3) Soldas de filete devem ser verificadas como
descrito em 2.24.5.
2.25.2.4 Conexões de Sobreposição. Juntas
sobrepostas reduzem os problemas de projeto no
membro principal ao transferir a maior parte da carga
transversal diretamente de um membro de ramificação
para outro (ver Figura 2.20).
Os critérios dessa seção são aplicáveis a conexões
esteticamente carregadas que atendam às seguintes
limitações:
(1) A ramificação maior, mais espessa é o membro
conectado.
(2) β ≥ ,25.
(3) O membro de ramificação de sobreposição é 0,75
a 1,0 vez o tamanho do membro conectado com pelo
menos 25% de suas faces de lado em sobreposição com
o membro conectado.
(4) Ambos os membros de ramificação têm o mesmo
limite de escoamentolimite de escoamento.
(5) Todos os membros de ramificação e de corda são
tubos de caixa compactos com largura/espessura de ≤
35 para ramificações, e ≤ 4 para corda.
As seguintes verificações devem ser feitas:
(1) Capacidade axial Pu do tubo de sobreposição, usando
AWS D1.1/D1.1M:2010 2. PROJETO DE CONEXÕES SOLDADAS
22
Φ 0,95 com
( )
para 25% a 50% de sobreposição, com
( )
para 50% a 80% de sobreposição.
( )
para 80% a 100% de sobreposição.
( )
Para mais do que 100% de sobreposição
onde beo é largura efetiva para a face soldada à
corda,
( )
( )
e é a largura efetiva para a face soldada à cinta
conectada.
( ) da cinta conectada
E outros termos são como definido previamente.
(2) Carga transversal líquida na área de cobertura
combinada, tratada como conexão T- ou Y-.
(3) Para mais de 100% de sobreposição,
cisalhamento longitudinal deve ser verificado,
considerando apenas as paredes laterais da área de
cobertura do membro conectado para ser efetivo.
2.25.2.5 Flexão. Momento primário de flexão, M,
devido a carga aplicada, vigas cantiléver, laterais de
molduras sem cinta, etc., devem ser considerados no
projeto como uma carga axial adicional, P:
No lugar de uma análise mais racional (ver Comentário),
JD pode ser tomado como η D/4 para flexão em plano, e
como βD/4 para flexão fora do plano. Os efeitos de
carga axial, flexão no plano e flexão fora do plano
devem ser considerados como aditivos. Os momentos
devem ser tomados na área de cobertura do membro de
ramificação.
2.25.2.6 Outras Configurações. Conexões transversais
em T-, Y-, de folga em K-, e de folga em N- com tubos
de ramificação circulares emoldurados em uma seção de
caixa de membro principal podem ser designados
usando 78,5% da capacidade dada em 2.25.2.1 e
2.25.2.2, ao substituir a dimensão de caixa “a” e “b” em
cada equação por diâmetro de ramificação, db (limitado
a seções compactas com 0,4 ≤ β ≤ 0,8).
2.26 Transição de Espessura
Juntas de topo de tensão em membros primários de
espessura de material ou tamanho diferentes alinhados
axialmente carregados ciclicamente devem ser feitas de
tal maneira que a inclinação através da zona de transição
não exceda 1 in 2-1/2. A transição deve ser alcançada
pelo chanframento da parte mais grossa, inclinando o
metal de solda, ou por qualquer combinação desses
métodos (ver Figura 2.21).
2.27 Limitações de Material
Conexões tubulares são sujeitas a concentrações de
tensão locais que podem levar a cessão local e
deformações plásticas na carga de projeto. Durante a
vida útil, cargas cíclicas podem iniciar trincas de fadiga,
fazendo demandas adicionais na ductilidade do aço,
particularmente sob cargas dinâmicas. Essas demandas
são particularmente severas em metais de juntas de
paredes pesadas projetados para puncionamento (ver
Comentário C-2.27.2.2).
2.27.1 Limitações
2.27.1.1 Limite de escoamento. As provisões de
projeto de 2.24 para conexões tubulares soldadas não
são intencionadas para uso com tubos circulares tendo
um limite mínimo específico, , de mais de 60 ksi [415
MPa] ou para seções de caixa mais de 52 ksi [360 MPa].
2.27.1.2 Limite Reduzido Efetivo. O limite
reduzido efetivo deve ser usado como Fyo no projeto de
conexões tubulares com limites de , como segue:
(1) 2/3 da resistência a tração mínima especificada
para seções circulares (ver Observações na Tabela 2.10).
(2) 4/5 da resistência de tração mínima especificada
para seções retangulares (ver Figura 2.19).
2.27.1.3 Conexões de Caixa em T-, Y-, e K-. O
projetista deveria considerar demandas especiais que são
colocadas no aço usado em conexões de caixa em T-, Y-
, e K-.
2.27.1.4 Precaução ASTM A 500. Produtos
manufaturados de acordo com essa especificação podem
não ser adequadas a essas aplicações tais como
elementos dinamicamente carregados em estruturas
soldadas, etc., onde propriedades de tenacidade ao
entalhe de baixa temperatura podem ser importantes.
Investigação especial ou tratamento térmico podem ser
necessários se este produto for aplicado a conexões
tubulares em T-,Y-, e K-.
2.27.2 Resistência ao Entalhe de Metal Base Tubular
2.27.2.1 Requisitos de Teste CVN. Membros
tubulares soldados em tensão devem ser requisitados a
demonstrar energia absorvida em teste CVN de 20
pés⋅libras a 70°F [27 J a 20°C] para as seguintes
condições:
AWS D1.1/D1.1M:2010 2. PROJETO DE CONEXÕES SOLDADAS
23
(1) Espessura de metal base de 2 in [50 mm] ou maior
com um limite de escoamento mínimo especificado de
40 ksi [280 MPa] ou maior.]
O teste CVN deve estar em conformidade com ASTM A
673 (Frequência H, lote de aquecimento). Para os
propósitos desta subcláusulas, um membro de tensão é
definido como um que tenha mais que 10 ksi [70 MPa]
de tensão de tração devido a cargas de projeto.
2.27.2.2 Requisitos LAST. Tubulares usados como
membro principal em nós estruturais, cujo projeto é
governado por cargas cíclicas ou de fadiga (por
exemplo, o metal de junta em conexões em T-, Y-, e K-)
devem ser requisitados a demonstrar no teste CVN
energia absorvida de 20 pés⋅libra [27 J] na Menor
Temperatura de Serviço Antecipada (Lowest
Anticipated Service Temperature - LAST) para as
seguintes condições:
(1) Espessura do metal base de 2 in [50 mm] ou
maior.
(2) Espessura de metal base de 1 in [25 mm] ou
maior com um limite de escoamento especificado de 50
ksi [345 MPa] ou maior.
Quando o LAST não é especificado, ou a estrutura não é
governada por carga cíclica ou de fadiga, o teste deve
ser a temperatura não maior que 40°F [4°C]. O teste
CVN deve normalmente representar os tubulares como
fornecidos, e ser testado em conformidade com ASTM
A 673 Frequência H (lote de aquecimento).
2.27.2.3 Tenacidade ao Entalhe Alternativa.
Requisitos de tenacidade ao entalhe alternativa devem
aplicar-se quando especificados em documentos de
contrato. O Comentário dá diretrizes adicionais para
projetistas. A tenacidade deve ser considerada em
relação à redundância versus gravidade de estrutura em
um estágio inicial de planejamento e projeto.
AWS D1.1/D1.1M:2010 2. PROJETO DE CONEXÕES SOLDADAS
Tabela 2.1
Tamanho Efetivo da Solda em Chanfro Curvado com
Preenchimento por Jateamento (ver 2.4.1.4)
Processo de Soldagem Chanfro Bisel Curvado Chanfro em V Curvado
SMAW e FCAW-S
GMAWª e FCAW-G
SAW
5/16 R
5/8 R
5/16 R
5/8 R
3/4 R
1/2 R
a
Exceto GMAW-S
Observação: R = raio da superfície externa.
Tabela 2.2
Dimensão de Perda Z (Não-tubular) (ver 2.4.3.3)
Posição de Soldagem - V ou OH Posição de Soldagem - H ou F
Ângulo Diedro ψ Processo Z (in) Z (mm) Processo Z (in) Z (mm)
6 >ψ ≤ 45
SMAW
FCAW-S
FCAW-G
GMAW
1/8
1/8
1/8
N/A
3
3
3
N/A
SMAW
FCAW-S
FCAW-G
GMAW
1/8
0
0
0
3
0
0
0
45 >ψ ≤ 30
SMAW
FCAW-S
FCAW-G
GMAW
1/4
1/4
3/8
N/A
6
6
10
N/A
SMAW
FCAW-S
FCAW-G
GMAW
1/4
1/8
1/4
1/4
6
3
6
6
AWS D1.1/D1.1M:2010 2. PROJETO DE CONEXÕES SOLDADAS
Tabela 2.3
Tensões Permissíveis (ver 2.6.4 e 2.16.1)
Tipo de Tensão Aplicada Tensão Permissível
Nível de Resistência Requerido do
Metal de Adição
Soldas em Chanfro CJP
Tensão normal sobre a área efetivaa
Mesma que metal base
Metal de adição correspondente
deve ser usado b
Compressão normal sobre a área efetiva Mesma que metal base
Metal de adição com nível de
resistência igual ou uma
classificação (10ksi [70MPa])
menor que o metal de adição
correspondente deve ser usado.
Tensão ou compressão paralela ao eixo da
soldac
Não é uma consideração de projeto de junta
soldada. Metal de adição com nível de
resistência igual ou menor que o
metal de adição correspondente
deve ser usado.
Cisalhamento na área
0,30 × classificação de resistência de tensão de
metal de adição, exceto cisalhamento no metal
base, não deve exceder 0,40 × limite de escoamento
do metalbase
Soldas em Chanfro PJP
Tensão normal para a área efetiva
0,30 × classificação de resistência de tensão de
metal de adição
Metal de adição com nível de
resistência igual ou menor que o
metal de adição correspondente
deve ser usado.
Compressão normal à área efetiva da solda
em juntas projetadas para suportar
0,90 × classificação de resistência de tensão de
metal de adição, mas não mais que 0,90 × limite de
escoamento do metal base conectado
Compressão normal à área efetiva da solda
em juntas não projetadas para suportar
0,75 × classificação de resistência de tensão de
metal de adição
Tensão ou compressão paralela ao eixo da
soldac
Não é uma consideração de projeto de junta
soldada
Cisalhamento paralelo ao eixo da área
efetiva
0,30 × classificação de resistência de tensão de
metal de adição exceto cisalhamento no metal base
não deve exceder 0,40 × limite de escoamento do
metal base
Soldas de Filete
Cisalhamento na área efetiva ou solda
0,30 × classificação de resistência de tensão de
metal de adição exceto que a tensão da área de
cisalhamento na seção líquida do metal base não
deve exceder 0,40 × limite de escoamento do metal
based,e
Metal de adição com nível de
resistência igual ou menor que o
metal de adição correspondente
deve ser usado.
Tensão ou compressão paralela ao eixo da
soldac
Não é uma consideração de projeto de junta
soldada
Soldas de Tampão
Cisalhamento paralelo á superfície de
contato na área efetivaf
0,30 × classificação de resistência de tensão de
metal de adição
Metal de adição com nível de
resistência igual ou menor que o
metal de adição correspondente
deve ser usado.
a
Para definições de áreas efetivas, ver 2.4.
b
Para metal de adição correspondente a resistência de metal base para aços aprovados em código, ver Tabela 3.1 e Tabela 4.9.
c
Componentes de juntas de soldas de filete e soldas em chanfro de membros construídos podem ser projetadas sem consideração à
tensão e tensão de compressão nos componentes conectados paralelos ao eixo da solda embora a área da solda normal para o eixo da
solda podem ser incluídas na área de seção transversal do membro.
d
A limitação em tensão no metal base metal a 0,40 × limite de escoamento do metal base não se aplica a tensão em perna de solda
diagramática; no entanto, uma verificação deve ser feita para assegurar que a resistência da conexão não é limitada pela espessura do
metal base na área líquida ao redor da conexão, particularmente no caso de um par de soldas de filete em lados opostos de um elemento
de placa.
e
De forma alternada, ver 2.6.4.2, 2.6.4.3, e 2.6.4.4. A Observação d (acima) aplica-se.
f
A resistência da conexão também deve ser limitada pela capacidade de carga de ruptura do metal base mais fino na área de perímetro ao
redor da conexão.
AWS D1.1/D1.1M:2010 2. PROJETO DE CONEXÕES SOLDADAS
Tabela 2.4
Coeficientes de Resistência Equivalente para Soldas
de Filete Carregadas Obliquamente (ver 2.6.4.4)
Ângulo de Carga para o
Elemento Sendo Analisado
Ângulo de Carga para Elemento de Solda com a
Capacidade de Deformação Mais Baixa
Θ C(90) C(75) C(60) C(45) C(30) C(15) C(0)
0 0,825 0,849 0,876 0,909 0,948 0,948 1
15 1,02 1,04 1,05 1,07 1,06 0,883
30 1,16 1,17 1,18 1,17 1,10
45 1,29 1,30 1,29 1,26
60 1,40 1,40 1,39
75 1,48 1,47
90 1,50
Observação: o elemento de solda com capacidade de deformação mais baixa será o elemento com o maior ângulo de carga. Interpolação
linear entre ângulos de carga adjacentes é permitida.
AWS D1.1/D1.1M:2010 2. PROJETO DE CONEXÕES SOLDADAS
140
Tabela 2.7
Categorias de Tensão para Tipo e Local de Material para Seções Circulares (ver
2.21.6.2)
Categoria de
Stress
Situação Tipos de Tensãoa
A Tubo simples não soldado TCBR
B Tubo com costura longitudinal TCBR
B Emendas de topo, soldas em chanfro CJP, retificadas ao nível e
inspecionadas por RT ou UT (Classe R)
TCBR
B Membros com reforços longitudinais continuamente soldados TCBR
C1 Emendas de topo, soldas em chanfro CJP, soldagem em bruto TCBR
C2 Membros com reforços transversais (anel) TCBR
D Membros com vários anexos como grampos, suportes, etc. TCBR
D
Juntas cruciformes e em T com soldas CJP (exceto em conexões
tubulares)
TCBR
DT
Conexões projetadas como conexões T-, Y-, ou K-simples, com
soldas em chanfro CJP em conformidade com as Figuras 3.8–
3.10 (inclusive conexões sobrepostas nas quais o membro
principal em cada intersecção está de acordo com os requisitos
de puncionamentopuncionamento) (ver Observação b)
TCBR em membro de ramificação (Observação:
O membro principal precisa ser verificado
separadamente por categoria K1 ou K2 )
E
Juntas cruciformes e em T- equilibradas com soldas em chanfro
PJP ou soldas de filete (exceto em conexões tubulares)
TCBR em membro; a solda também precisa ser
verificada por categoria F
E
Membros em que invólucro dobrador, placas de cobertura,
reforços longitudinais, chapas escamadas, etc., terminam (exceto
em conexões tubulares)
TCBR em membro; a solda também precisa ser
verificada por categoria F
ET
Conexões T-, Y-, e K- simples com soldas em chanfro PJP ou
soldas de filete; também, conexões tubulares complexas nas
quais a capacidade de puncionamentopuncionamento do membro
principal não pode carregar a carga inteira e a Transferência de
carga é alcançada por sobreposição (excentricidade negativa),
chapas escamadas, anéis de reforço, etc. (ver Observação b)
TCBR em membro de ramificação (Observação:
O membro principal em conexões T-, Y-, ou K-
simples precisam ser verificados separadamente
por categoria K1 ou K2 ; a solta também precisa
ser verificada por categoria FT e 2.25.1)
F
Solda de extremidade de placa de cobertura ou invólucro
dobrador; soldas em chapas escamadas, reforços, etc.
Cisalhamento em solda
F
Juntas cruciformes e em T-, carregadas em tensão ou flexão,
tendo soldas de filete ou em chanfro PJP (exceto em conexões
tubulares)
Cisalhamento em solda (a despeito da direção do
carregamento) (ver 2.24)
FT
Conexões T-, Y-, ou K- simples carregadas em tensão ou flexão,
tendo soldas de filete ou em chanfro PJP
Cisalhamento em solda (a despeito da direção do
carregamento)
X2
Membros de intersecção em conexões T-, Y-, e K-simples;
qualquer conexão cuja adequação é determinada ao testar um
modelo precisamente escalonado ou por análise teórica (por
Maior faixa total de tensão ou deformação na
superfície externa de membros de intersecção na
extremidade da solda que os junta—medida após
AWS D1.1/D1.1M:2010 2. PROJETO DE CONEXÕES SOLDADAS
exemplo, elemento finito) teste em conexão modelo ou protótipo ou
calculada com a melhor teoria disponível
(Continua)
Tabela 2.7 (Continuação)
Categorias de Tensão para Tipo e Local de Material para Seções Circulares (ver
2.21.6.2)
Categoria de
Stress
Situação Tipos de Tensãoa
X1 Como para X2 , perfil aperfeiçoado por 2.21.6.6 e 2.21.6.7 Como para X2
X1 Intersecção cone-cilindro não reforçada
Tensão de ponto de aquecimento em mudança de
ângulo; calcular por Observação d
K2
Conexões T-, Y-, e K- simples nas quais a razão gama R/tc do
membro principal não excede 24
(ver Observação c).
PuncionamentoPuncionamento para membros
principais; calculado por Observação e
K1 Como para K2 , perfil aperfeiçoado por 2.21.6.6 e 2.21.6.
a
T = tensão, C = compressão, B = flexão, R = reversão—isto é, faixa total de tensão axial nominal e de flexão.
b
Curvas empíricas (Figura 2.13) baseadas em geometrias de conexão “típicas”; se fatores reais de concentração de
tensão ou deformações de ponto de aquecimento são conhecidos, o uso da curva X1 ou X2 é preferencial.
c
Curvas empíricas (Figura 2.13) baseadas em testes com gama (R/tc ) de 18 a 24; curvas do lado seguro para membros
de corda muito pesados (baixo R /tc ); para membros de corda (R /tc maior que 24) reduz a tensão permissível em
proporção a
( )
Quando fatores reais de concentração de tensão ou deformações de ponto de aquecimento são conhecidos, o uso da curva
X1 ou X2 é preferencial
d Fator de concentração de tensão – √
onde
= mudança de ângulo na transição
= raio para razão de espessura do tubo na transição
e
A faixa cíclica de puncionamentopuncionamento é dada por
[ √( ) ( ) ]
Onde
τ e são definidos na Figura 2.14, e
= faixa cíclica de tensão nominal de membro de ramificação para carga axial.
= faixa cíclica de tensão de flexão no plano.
= faixa cíclica de tensão de flexão fora do plano.
α é como definido na Tabela 2.10.
AWS D1.1/D1.1M:2010 2. PROJETO DE CONEXÕES SOLDADAS
Tabela 2.8
Limitações de Categoria de Fadiga no Tamanho ou Espessura da Solda e Perfil de
Solda
(Conexões Tubulares) (ver 2.21.6.7)
Perfil de Solda
Nível I Nível II
Espessura de Limitação do Membro de
Ramificação para Categorias X1, K1, DT in
[mm]
Espessura de Limitação para Membro de
Ramificação para Categorias X2 , K2
in [mm]
Perfil de solda plana padrão
Figura 3.8
0,375 [10] 0,625 [16]
Perfil com filete de extremidade
Figura 3.9
0,625 [16]
1,50 [38]
qualificado para espessura ilimitada
para carga de compressão estática
Perfil côncavo, soldagem em bruto,
Figura 3.10
com teste de disco por 2.21.6.6(1)
1,00 [25]0 ilimitado
Perfil liso côncavo
Figura 3.10
completamente retificado por
2.21.6.6(2)
Ilimitado —
Tabela 2.9
Dimensões de Perda Z para Calcular Tamanhos de Solda Mínimos para
Conexões Tubulares
Pré-qualificadas T-, Y-,e K- PJP (ver 2.24.2.1)
Posição de Soldagem: V ou OH Posição de Soldagem: H ou F
Ângulo Incluído da
Junta φ
Processo Z (in) Z (mm) Processo Z (in) Z (mm)
φ
SMAW
FCAW-S
FCAW-G
GMAW
GMAW-S
0
0
0
N/A
0
0
0
0
N/A
0
SMAW
FCAW-S
FCAW-G
GMAW
GMAW-S
0
0
0
0
0
0
0
0
0
0
60 > φ
SMAW
FCAW-S
FCAW-G
GMAW
GMAW-S
1/8
1/8
1/8
N/A
1/8
3
3
3
N/A
3
SMAW
FCAW-S
FCAW-G
GMAW
GMAW-S
1/8
0
0
0
0
3
0
0
0
3
45 > φ
SMAW
FCAW-S
FCAW-G
GMAW
GMAW-S
1/4
1/4
3/8
N/A
3/8
6
6
10
N/A
10
SMAW
FCAW-S
FCAW-G
GMAW
GMAW-S
1/4
1/8
1/4
1/4
1/4
6
3
6
6
6
AWS D1.1/D1.1M:2010 2. PROJETO DE CONEXÕES SOLDADAS
Tabela 2.10
Termos para Resistência de Conexões (Seções Circulares) (ver 2.25.1.1)
Geometria de membro
de ramificação e
modificador de carga Qq
( )
( )
( )
( )
Para cargas axiais (ver Observação d)
Para flexão
Qβ
(necessário para Qq)
Qβ ,0 Para β ≤ 0,6
( )
Para β > ,6
corda
ovalização
α , + ,7 g/db
1,0 ≤ α <1,7
Para carga axial em conexões K- de folga tendo todos os
membros no mesmo plano e cargas transversais ao membro
principal essencialmente equilibradas (ver Observação a)
parâmetro
α ,7
α 2,4
Para carga axial em conexões T- e Y-
Para carga axial em conexões transversais
α (necessário para Qq)
α ,67
α ,5
Para flexão no plano (ver Observação c)
Para flexão fora do plano (ver Observação c)
Termo de interação de
tensão do membro
principal Qf (Ver
Observações b e c)
Qf = 1,0 – λ γ Ū2
λ , 3 Para carga axial em membro de ramificação
λ , 44 Para flexão no plano em membros de ramificação
λ , 8 Para flexão fora do plano em membros de ramificação
a
Folga g é definida nas Figuras 2.14 (E), (F), e (H); db é diâmetro da ramificação.
b
U é a taxa de utilização (taxa de real a permissível) para compressão longitudinal (axial, flexão) no membro principal na conexão sob
consideração.
U2
c
Para combinações de flexão no plano e flexão fora do plano, use valores interpolados de α e λ.
d
Para colapso geral (compressão transversal) ver também 2.25.1.2.
Notas:
. γ , β são parâmetros de geometria definidos pela Figura 2.14 (M).
2. Fyo = o limite de escoamento mínimo especificado do membro principal, mas não mais que 2/3 da resistência à tração.
AWS D1.1/D1.1M:2010 2. PROJETO DE CONEXÕES SOLDADAS
Figura 2.1 - Tamanho Máximo de Solda de Filete
Ao Longo das Arestas em Juntas Sobrepostas (ver 2.4.2.9)
AWS D1.1/D1.1M:2010 2. PROJETO DE CONEXÕES SOLDADAS
Figura 2.2 - Transição de Juntas de Topo em Partes de Espessura Desigual
(Não-tubulares Carregadas Estaticamente) (ver 2.17.1.1)
AWS D1.1/D1.1M:2010 2. PROJETO DE CONEXÕES SOLDADAS
Figura 2.3—Transição das Espessuras
(Não-tubulares Carregadas Estaticamente) (ver 2.7.5 e 2.8.1)
Figura 2.4 - Soldas de Filete Carregadas Transversalmente (ver 2.9.1.2)
AWS D1.1/D1.1M:2010 2. PROJETO DE CONEXÕES SOLDADAS
Figura 2.5 - Comprimento Mínimo de Soldas de Filete Longitudinais na Extremidade
de Membros de Placa ou Barra Chata (ver 2.9.2)
Figura 2.6 - Terminação de Soldas Próximo a Arestas Sujeitas a Tensão
(ver 2.9.3.2)
AWS D1.1/D1.1M:2010 2. PROJETO DE CONEXÕES SOLDADAS
Figura 2.7 –Soldagem de Acabamentoem Conexões Flexíveis (ver 2.9.3.3)
Figura 2.8 - Soldas de Filete em Lados Opostos de um Plano Comum (ver 2.9.3.5)
AWS D1.1/D1.1M:2010 2. PROJETO DE CONEXÕES SOLDADAS
Observação: A área efetiva da solda 2 deve ser igual à da solda 1, mas o seu tamanho deve ser o seu tamanho efetivo mais a espessura da
Placa de enchimento T.
Figura 2.9 – Placas de Enchimento Finas em Junta de Emenda (ver 2.11.1)
Observação: A área efetiva das soldas 1, 2, e 3 deve ser adequada para transmitir a força do projeto, e o comprimento das soldas 1 e 2
deve ser adequado para evitar tensão excessiva da placa de enchimento em cisalhamento ao longo dos planos x-x.
Figura 2.10 – Placas de Enchimento Grossas em Junta de Emenda (ver 2.11.2)
AWS D1.1/D1.1M:2010 2. PROJETO DE CONEXÕES SOLDADAS
Figura 2.11 – Faixa de Tensão Permissível para Carga Aplicada Ciclicamente
(Fadiga) em Conexões Não-tubulares (Traçado Gráfico da Tabela 2.5)
AWS D1.1/D1.1M:2010 2. PROJETO DE CONEXÕES SOLDADAS
Figura 2.12—Transição da Largura (Não-tubular Carregada Ciclicamente)
(ver 2.17.1.2)
Figura 2.13—Tensão de Fadiga Permissível e Faixas de Deformação para Categorias
de Tensão (ver Tabela 2.7), Estruturas Tubulares Redundantes para Serviço
Atmosférico (ver 2.21.6.3)
AWS D1.1/D1.1M:2010 2. PROJETO DE CONEXÕES SOLDADAS
a
Folga relevante é entre cintas cujas cargas estão essencialmente equilibradas. O tipo (2) também pode ser designado como uma conexão
N-.
Figura 2.14—Partes de uma Conexão Tubular (ver 2.22)
AWS D1.1/D1.1M:2010 2. PROJETO DE CONEXÕES SOLDADAS
Figura 2.14 (Continuação) - Partes de uma Conexão Tubular (ver 2.22)
AWS D1.1/D1.1M:2010 2. PROJETO DE CONEXÕES SOLDADAS
Figura 2.14 (Continuação) - Partes de uma Conexão Tubular (ver 2.22)
AWS D1.1/D1.1M:2010 2. PROJETO DE CONEXÕES SOLDADAS
Nota: L = tamanho como requerido
Figura 2.15—Junta Sobreposta Soldada com Filete (Tubular) (ver 2.24.1.3)
Figura 2.16—Raio de Alcance de Solda de Filete
em Conexões Tubulares T-, Y-, e K- (ver 2.24.3)
AWS D1.1/D1.1M:2010 2. PROJETO DE CONEXÕES SOLDADAS
Figura 2.17—Tensão de PuncionamentoPuncionamento(ver 2.25.1.1)
Figura 2.18—Detalhe de Sobreposição de Junta
(ver 2.25.1.6)
AWS D1.1/D1.1M:2010 2. PROJETO DE CONEXÕES SOLDADAS
Notas:
1. - ,55H ≤ e ≤ ,25H
2. ≤ 3 º
3. H/tc e D/tc ≤ 35 (4 para sobreposição em K e conexões em N)
4. a/tb e b/tb ≤ 35
5. Fyo ≤ 52 ksi 36 Mpa
6. ,5 ≤ H/D ≤ 2,
7. Fyo/Fult ≤ ,8
Figura 2.19 – Limitações para Conexões de Caixaem T-, Y- e K (ver 2.25.2)
Figura 2.20 – Conexões Sobrepostas em K (ver 2.25.2.4)
Notas:
1. O chanfro pode ser de qualquer tipo ou detalhe permitido ou qualificado.
2. As inclinações de transição exibidas são as máximas permitidas.
3. Em (B), (D), e (E) o chanfro pode ser de qualquer tipo e detalhe permitido e qualificado. As inclinações de transição exibidas são as máximas permitidas.
Figura 2.21—Transição de Espessura de Juntas de Topo em Partes de Espessura Desigual (Tubulares) (ver
2.26)
AWS
D1.1/D1.1M:2010
2.
PROJETO
DE
CONEXÕES
SOLDADAS
AWS D1.1/D1.1M:2010
140
Esta página está em branco intencionalmente.
AWS D1.1/D1.1M:2010
59
3. Pré-qualificação de WPSs
3.1 Escopo
A pré-qualificação de WPSs (Welding Procedure
Specifications – Especificações de Procedimento de
Soldagem) deve ser definida como isenta de teste de
qualificação de WPS exigida na Cláusula 4. Todas as
WPSs pré-qualificadas deverão ser escritas. Para uma
WPS ser pré-qualificada, será exigida conformidade
com todos os requisitos aplicáveis da Cláusula 3. As
WPSs que não estiverem em conformidade com os
requisitos da Cláusula 3 poderão ser qualificadas por
meio de testes nos termos da Cláusula 4. Para uma
maior comodidade, o Anexo Q enumera as disposições
a serem incluídas na WPS pré-qualificada e que deverão
ser abordadas no programa de soldagem do fabricante
ou do contratante.
Soldadores, operadores de soldagem e soldadores
ponteadores que utilizam WPSs pré-qualificadas devem
ser classificados em conformidade com a Cláusula 4,
Parte C.
3.2 Processos de Soldagem
3.2.1 Processos Pré-qualificados. Os processos WPSs
SMAW, SAW, GMAW (exceto GMAW-S) e FCAW
que cumprirem todas as disposições da Cláusula 3
deverão ser considerados como pré-qualificados e,
portanto, aprovados para uso sem a realização de testes
de qualificação de WPS para o processo. Para a pré-
qualificação de WPS, será exigida conformidade com
todos os requisitos aplicáveis da Cláusula 3 (ver 3.1).
3.2.2 Processos Aprovados de Codificação. Podem ser
utilizadas os processos de soldagem ESW, EGW,
GTAW e GMAW-S, desde que as WPSs sejam
classificadas em conformidade com os requisitos da
Cláusula 4. Note-se que os limites variáveis essenciais
na Tabela 4.5 para GMAW devem ser igualmente
aplicados em GMAW-S.
3.2.3 Outros Processos de Soldagem. Podem ser
utilizados outros processos de soldagem não abrangidos
por 3.2.1 e 3.2.2, desde que as WPSs sejam qualificadas
por meio de testes aplicáveis, conforme descrito na
Cláusula 4.
3.2.4 Fontes de Alimentação de FCAW e GMAW.
FCAW e GMAW que forem consideradas como WPSs
pré-qualificadas deverão ser feitas utilizando-se fontes
de alimentação com voltagem constante (CV).
3.3 Combinações de Metal Base /
Metal de Adição
Apenas metais de base e metais de adição relacionados
na Tabela 3.1 podem ser utilizados em WPSs pré-
qualificadas. (Para a qualificação de metais de base e
metais de adição que estão listados e de metais de base
e metais de adição que não estão enumerados na Tabela
3.1, ver 4.2.1).
As relações de resistência do metal base e do metal de
adição abaixo devem ser utilizadas em conjunto com a
Tabela 3.1 para determinar se são necessários metais de
adição correspondentes ou não-correspondentes.
Relações Metal(is) Base
Força do Metal de
Adição Relação
Exigida
Correspondentes
Qualquer aço
para si mesmo
ou qualquer
aço para outro
no mesmo
grupo
Qualquer metal de
adição listado no
mesmo grupo
AWS D1.1/D1.1M:2010 3. PRÉ-QUALIFICAÇÃO DE WPSS
60
Qualquer aço
em um grupo
para qualquer
aço em outro
grupo
Qualquer metal de
adição listado para cada
grupo de força. [Os
eletrodos de SMAW
devem ser classificados
como tendo um baixo
nível de hidrogênio.]
Não
correspondentes
Qualquer aço
para qualquer
aço em
qualquer grupo
Qualquer metal de
adição listado em um
grupo de força abaixo
do grupo de menor
força. [Os eletrodos de
SMAW devem ser
classificados como
tendo um baixo nível de
hidrogênio.]
Nota: Consultar a Tabela 2.3 ou 2.6 para determinar os
requisitos de resistência do metal de adição para igualar
ou não a resistência do metal base.
3.4 Aprovação do engenheiro para
anexos auxiliares
Materiais não listados para anexos auxiliares que
estejam dentro do intervalo de composição química de
um aço relacionado na Tabela 3.1 podem ser usados em
uma WPS pré-qualificada, quando aprovados pelo
Engenheiro. O metal de adição e de pré-aquecimento
mínimo deve estar em conformidade com 3.5, com base
na força material similar e na composição química.
3.5 Requisitos de Temperaturas
Mínimas de Pré-aquecimento e
Interpasse
As temperaturas de pré-aquecimento e de interpasse
devem ser suficientes para evitar trincas. A Tabela 3.2
deve ser usada para determinar as temperaturas mínimas
de pré-aquecimento e de interpasse para os aços
relacionados na codificação.
3.5.1 Combinação Metal Base/Espessura. As
temperaturas mínimas de pré-aquecimento e de
interpasse aplicadas em uma junta composta de metais
de base com pré-aquecimentos mínimos diferentes da
Tabela 3.2 (com base na categoria e na espessura)
devem ser as mais elevadas desses pré-aquecimentos
mínimos.
3.5.2 Temperaturas de Pré-aquecimento e de
Interpasse de SAW Alternativa. As temperaturas de
pré-aquecimento e de interpasse para SAW com
eletrodos paralelos ou múltiplos devem ser selecionadas
em conformidade com a Tabela 3.2. Para soldas de
chanfro ou de filete em passe único, para combinações
de metais a serem soldados e o aporte de calor
envolvido, e com a aprovação do engenheiro, as
temperaturas de pré-aquecimento e de interpasse podem
ser estabelecidas como sendo suficientes para reduzir a
dureza na HAZs do metal base para menos de 225 o
número de dureza de Vickers para aços com uma
resistência à tração mínima especificada não superior a
60 ksi [415 MPa] e para menos de 280 o número de
dureza de Vickers para aços com uma resistência à
tração mínima especificada superior a 60 ksi [415
MPa], mas não superior a 70 ksi [485 MPa].
NOTE: O número de dureza de Vickers deve ser
determinado em conformidade com a norma ASTM E
92. Se for utilizado outro método de dureza, o número
de dureza equivalente deverá ser determinado a partir
da ASTM E 140 e deverão ser realizados testes de
acordo com as especificações ASTM aplicáveis.
3.5.2.1 Requisitos de Dureza. A determinação da
dureza de HAZ deverá ser feita:
(1) Nas seções transversais de análise macrográfica
inicial de um espécime em teste de amostragem.
(2) Na superfície do membro durante o andamento
do trabalho. A superfície deve ser esmerilhada antes do
teste de dureza:
(a) A frequência dos ensaios em HAZ deve
ocorrer em, pelo menos, uma área de testes por ligação
soldada do metal mais espesso envolvido em uma junta
com, cada qual, 50 pés [15 m] de soldas em chanfro ou
par de soldas filetes.
(b) Essas determinações de dureza podem ser
interrompidas depois que o procedimento tiver sido
estabelecido e a interrupção for aprovada pelo
engenheiro
3.6 Limitação de Variáveis de
WPS
Todas as WPSs pré-qualificadas que serão utilizadas
devem ser preparadas pelo fabricante, produtor ou
contratante como WPSs pré-qualificadas escritas e
devem estar disponíveis para quem estiver autorizado a
utilizá-las ou examiná-las. A WPS escrita pode seguir
qualquer formato adequado (ver Anexo N para
exemplos). Os parâmetros de soldagem estabelecidos na
Tabela 3.8 devem ser especificados na WPS escrita e
para variáveis com limites dentro da faixa indicada.
Mudanças para as variáveis essenciais além daquelas
permitidas por meio da Tabela 3.8 devem exigir uma
WPS pré-qualificada nova ou revista, ou devem exigir
que a WPS seja qualificada através de testes nos termos
da Cláusula 4.
3.6.1 Combinação de WPSs. Pode ser utilizada uma
combinação de WPSs qualificadas e pré-qualificadas
sem a qualificação do conjunto, desde que seja
observada a limitação das variáveis essenciais
aplicáveis em cada processo.
3.7 Requisitos Gerais de WPS
Todos os requisitos da Tabela 3.7 devem ser cumpridos
para WPSs pré-qualificadas.
3.7.1 Requisitos de Soldagem Vertical Ascendente. A
progressão de todos os passes de soldagem em posição
AWS D1.1/D1.1M:2010 3. PRÉ-QUALIFICAÇÃO DE WPSS
61
vertical deve ser ascendente, com as seguintes
exceções:
(1) A mordedura pode ser reparada verticalmente
em sentido descendente, quando o pré-aquecimento
estiver em conformidade com a Tabela 3.2, mas não
inferior a 70 ° F [20 ° C].
(2) Quando os produtos tubulares são soldados, a
progressão da soldagem vertical pode ser ascendente ou
descendente, mas somente na(s) direção(ões) para a(s)
qual(is) o soldador estiver qualificado.
3.7.2 Limitação de Largura/Profundidade do Passe.
Nem a profundidade, nem a largura máxima na seção
transversal do metal de solda depositado em cada passe
de solda devem exceder a largura na superfície do passe
de solda (ver Figura 3.1).
3.7.3 Requisitos de Aço Resistente à Corrosão
Atmosférica. No caso de aplicações expostas, nuas e
sem pintura de aço resistente à corrosão atmosférica que
requer metal de solda com resistência à corrosão
atmosférica e características de coloração semelhantes à
do metal base, a combinação de eletrodo ou
eletrodo-fluxo deve estar em conformidade com a
Tabela 3.3.
As exceções para esses requisitos são as seguintes:
3.7.3.1 Soldas de Chanfro em passe único. As
soldas em chanfro feitas em passe único ou em passe
único de cada lado podem ser realizadas utilizando-se
qualquer um dos metais de adição para os metais de
base do Grupo II na Tabela 3.1.
3.7.3.2 Soldas de Filete em Passe Único. Soldas de
filete em passe único, até as dimensões abaixo, podem
ser feitas utilizando-se qualquer um dos metais de
adição para os metais de base do Grupo II relacionados
na Tabela 3.1:
SMAW ¼ in [6mm]
SAW 5/16 in [8mm]
GMAW/FCAW 5/16 in [8 mm]
3.7.4 Gás de Proteção. Gases de proteção para GMAW
e FCAW-G devem estar em conformidade com a norma
AWS A5.32/A5.32M e uma das seguintes opções:
(1) O gás de proteção utilizado para classificação
de eletrodo de acordo com as especificações AWS A5
aplicáveis.
(2) Um gás de proteção recomendado para
utilização com o eletrodo específico pelo fabricante do
eletrodo. Tais recomendações devem ser sustentadas
por testes que demonstram que a combinação
eletrodo/gás de proteção é capaz de atender todos os
requisitos de propriedades mecânicas e químicas para a
classificação do eletrodo quando testado de acordo com
as especificações A5 AWS aplicáveis. A documentação
desses testes deve ser fornecida quando solicitada pelo
engenheiro ou inspetor.
3.8 Requisitos Comuns para SAW
de Eletrodos Paralelos e
Eletrodos Múltiplos
3.8.1 Passe de Raiz de GMAW. As soldas também
podem ser feitas na raiz de soldas em chanfro ou de
filete utilizando-se GMAW, seguidas por arcos
submersos de eletrodos paralelos ou múltiplos, desde
que a GMAW esteja em conformidade com os
requisitos desta seção e desde que o espaçamento entre
o arco de GMAW e o seguinte arco de SAW não exceda
15 in [380 mm].
3.9 Requisitos para Solda de Filete
Consultar a Tabela 5.8 para tamanhos mínimos de solda
de filete.
3.9.1 Detalhes (Não-tubular). Ver Figuras 2.1 e 2.4
para as limitações no caso de soldas de filete
pré-qualificadas.
3.9.2 Detalhes (Tubular). Para status pré-qualificados,
as conexões tubulares de soldagem de filete devem estar
em conformidade com as seguintes disposições:
(1) WPSs pré-qualificadas. As conexões tubulares
de soldagem de filete feitas por meio dos processos de
SMAW, GMAW ou FCAW, que podem ser utilizados
sem a realização de testes de qualificação WPS, estão
detalhadas na Figura 3.2 (ver 2.24.1.2 para limitações).
Esses detalhes também podem ser utilizados no caso de
GMAW-S qualificadas em conformidade com 4.13.4.3.
(2) Os detalhes da solda de filete pré-qualificada em
juntas sobrepostas estão mostrados na Figura 2.15.
3.9.3 Juntas Oblíquas em T. As juntas oblíquas em T
devem estar em conformidade com a Figura 3.11.
3.9.3.1 Limitações do Ângulo Diedro. O lado
obtuso das juntas oblíquas em T com ângulos diedros
maiores que 100° deve ser preparado como mostrado na
Figura 3.11, Detalhe C, a fim de permitir a colocação de
uma solda do tamanho necessário. A quantidade de
usinagem ou retificação etc. da Figura 3.11, Detalhe C,
não deve ser maior que o exigido para atingir o tamanho
de solda necessário (W).
3.9.3.2 Tamanho Mínimo de Solda para Juntas
Oblíquas em T. No caso das juntas oblíquas em T, o
tamanho mínimo da solda para os Detalhes A, B e C na
Figura 3.11 deve estar em conformidade com a Tabela
5.8.
3.10 Requisitos para Soldas de
Tampão (Soldas Plug e Slot)
Os detalhes de soldas de tampão (plug e slot)
feitas por meio dos processos de SMAW, GMAW
(exceto GMAW-S) ou FCAW estão descritos em
2.4.5.1, 2.4.5.2, 2.4.5.4 e 2.10.4 e podem ser
utilizados sem a realização da qualificação WPS
AWS D1.1/D1.1M:2010 3. PRÉ-QUALIFICAÇÃO DE WPSS
62
descrita na Cláusula 4, desde que as disposições
técnicas de 5.25 sejam observadas.
3.11 Requisitos Comuns de Soldas
em Chanfro PJP e CJP
3.11.1 FCAW/GMAW em Juntas SMAW. As
preparações em chanfro detalhadas para juntas SMAW
pré-qualificadas podem ser utilizadas para GMAW ou
FCAW pré-qualificada.
3.11.2 Preparação de Junta de Ângulo. No caso de
juntas de ângulo, a preparação do chanfro externo pode
ser feita em um ou ambos os membros, desde que a
configuração básica do chanfro não seja alterada e a
distância adequada da aresta seja mantida para dar
suporte às operações de soldagem sem fusão excessiva.
3.11.3 Aberturas de Raiz. As aberturas de raiz na junta
podem variar conforme observado em 3.12.3 e 3.13.1.
No entanto, para a soldagem automática ou mecanizada
utilizando processos de FCAW, GMAW e SAW, a
variação de abertura máxima de raiz (abertura de
mínima para máxima como ajuste) não pode exceder
1/8 in [3 mm]. Variações maiores que 1/8 in [3 mm]
devem ser corrigidas localmente, antes da soldagem
automática ou mecanizada.
3.12 Requisitos de PJP
As soldas em chanfro com PJP devem ser feitas
utilizando-se os detalhes de junta descritos na Figura
3.3. As limitações dimensionais da junta descritas em
3.12.3 deverão ser aplicadas.
3.12.1 Definição. Salvo as disposições de 3.13.5 e
Figura 3.4 (B-L1-S), as soldas em chanfro sem suporte
de aço, soldadas de um lado, e as soldas em chanfro
soldadas de ambos os lados, mas sem goivagem por
trás, são consideradas soldas em chanfro com PJP.
3.12.2 Tamanho de Solda. O tamanho de solda (E) de
um chanfro PJP pré-qualificado deve ser como
mostrado na Figura 3.3 para o processo específico de
soldagem, indicação da junta, o ângulo de chanfro e a
posição de soldagem propostos para utilização na
fabricação da solda.
3.12.2.1 Tamanhos de Solda Pré-qualificados
(1) O tamanho mínimo de solda das soldas de
chanfro em V simples ou em X, em bisel, em J e em U,
com PJP, tipos de 2 a 9, deve ser como mostrado na
Tabela 3.4. A espessura do metal base deve ser
suficiente para incorporar os requisitos dos detalhes da
junta selecionada, em conformidade com as variações
descritas no 3.12.3 e os requisitos da Tabela 3.4.
(2) A espessura máxima do metal base não deve ser
limitada.
(3) As dimensões mínimas da solda em chanfro
quadrado B-P1 e as soldas de chanfro em bisel curvado
BTC-P10 e B-P11 de PJP devem ser calculadas a partir
da Figura 3.3.
(4) Os desenhos de oficina e de execução devem
especificar as profundidades dos chanfros do projeto
“S” aplicáveis para o tamanho de solda “(E)” necessário
nos termos de 3.12.2. (Note que essa exigência não se
aplica aos detalhes B-P1, BTC-P10 e P11-B.)
3.12.3 Dimensões da junta
(1) As dimensões das soldas em chanfro
especificadas em 3.12 podem variar no projeto ou nos
desenhos de detalhe dentro dos limites de tolerância
indicados na coluna “Como Detalhado” na Figura 3.3.
(2) As tolerâncias de ajuste da Figura 3.3 podem ser
aplicadas às dimensões indicadas no desenho de
detalhe. No entanto, a utilização de tolerâncias de ajuste
não isenta o usuário de cumprir os requisitos mínimos
do tamanho de solda do parágrafo 3.12.2.1.
(3) Chanfros em J e em U podem ser preparados
antes ou depois da montagem.
3.12.4 Detalhes (Tubular). Os detalhes para soldas de
chanfro tubulares PJP, às quais são atribuídos status
pré-qualificados, devem estar em conformidade com as
seguintes disposições:
(1) As soldas em chanfro tubulares PJP, menos as
conexões em T, Y e K, podem ser utilizadas sem a
realização de testes de qualificação WPS, quando estes
podem ser aplicados, e devem cobrir todas as limitações
da dimensão da junta, conforme descrito naFigura 3.3.
(2) As conexões tubulares em T, Y e K com PJP,
soldadas apenas por meio dos processos SMAW,
GMAW ou FCAW, podem ser utilizadas sem a
realização de testes de qualificação WPS, quando estes
puderem ser aplicados, e devem cobrir todos os limites
da dimensão da junta, conforme descrito na Figura 3.5.
Esses detalhes também podem ser utilizados em
GMAW-S qualificadas, em conformidade com 4.13.4.3.
3.12.4.1 Conexões Combinadas de Caixa. Os
detalhes para soldas em chanfro PJP nessas conexões,
as dimensões do canto e os raios do tubo principal são
mostrados na Figura 3.5. As soldas de filete podem ser
utilizadas nas áreas da extremidade e do calcanhar (ver
Figura 3.2). Se a dimensão do ângulo ou o raio do tubo
principal, ou ambos forem menores, como mostrado na
Figura 3.5, uma junta de amostragem do detalhe lateral
deve ser feita e seccionada para verificar o tamanho de
solda. A solda de ensaio deve ser feita na posição
horizontal. Essa exigência pode ser dispensada se o tubo
de ramificação for biselado, tal como mostrado, no caso
de soldas em chanfro com CJP, na Figura 3.6.
3.13 Requisitos de Solda em
Chanfro com CJP
As soldas em chanfro com CJP que podem ser usadas
sem a realização de testes de qualificação WPS
descritas na Cláusula 4 devem ser como detalhado na
Figura 3.4 e estão sujeitas aos limites descritos em
3.13.1.
3.13.1 Dimensões da Junta. As dimensões das soldas
em chanfro especificadas em 3.13 podem variar no
AWS D1.1/D1.1M:2010 3. PRÉ-QUALIFICAÇÃO DE WPSS
63
projeto ou nos desenhos de detalhe dentro dos limites
ou tolerâncias mostrados na coluna "Como detalhado"
na Figura 3.4. O ajuste do limite de tolerância da Figura
3.4 pode ser aplicado à dimensão mostrada no desenho
de detalhe.
3.13.2 Suporte. As soldas de chanfro pré-qualificadas
com CJP feitas de um só lado, exceto quando permitido
para estruturas tubulares, devem ter suporte de aço.
Outros suportes, tal como enumerados em 5.10, podem
ser utilizados, se qualificados em conformidade com a
Cláusula 4.
3.13.3 Preparação de Chanfro Duplo. Os chanfros em
J e em U e o outro lado de chanfros em X e em bisel
duplo (ou K) parcialmente soldados podem ser
preparados antes ou após a montagem. Após a
goivagem por trás, o lado oposto das juntas em X ou em
bisel duplo (ou K) parcialmente soldado deveria se
assemelhar a uma configuração de junta em U ou em J
pré-qualificada na raiz da junta. 3.13.4 Juntas de Topo
Tubulares. Para as soldas de chanfro tubulares, a fim
de que lhes seja atribuído um status pré-qualificado, as
seguintes condições devem ser aplicadas:
(1) WPSs Pré-qualificadas. Onde a soldagem de
ambos os lados ou soldagem de um lado com reforço
for possível, qualquer WPS e qualquer detalhe em
chanfro que tiver sido devidamente pré-qualificado, em
conformidade com a Cláusula 3, pode ser utilizado, a
não ser que a SAW esteja pré-qualificada apenas para
diâmetros maiores ou iguais a 24 in. [600 mm]. Os
detalhes da junta soldada devem respeitar a Cláusula 3.
(2) Detalhe de Junta Não Pré-qualificada. Não
existem detalhes de junta pré-qualificada para soldas de
chanfro com CJP em juntas de topo feitas de um lado
sem reforço (ver 4.13.2).
3.13.5 Conexões Tubulares em T, Y e K. Os detalhes
para soldas em chanfro com CJP soldadas de um lado
sem suporte em conexões tubulares em T, Y e K
utilizadas em tubos circulares estão descritos nesta
seção. A gama circunferencial aplicável de Detalhes A,
B, C e D está descrita nas Figuras 3.6 e 3.7 e os
intervalos de ângulos diedros locais, Ψ , que
correspondem aos mesmos, estão descritos na Tabela
3.5.
As dimensões da junta que incluem ângulos de chanfro
estão descritas na Tabela 3.6 e na Figura 3.8. Ao
selecionar um perfil (compatível com a categoria de
fadiga usado no projeto) como uma função da
espessura, as diretrizes de 2.21.6.7 deverão ser
observadas. Perfis alternativos de solda, que podem ser
necessários para seções mais espessas, estão descritos
na Figura 3.9. Na ausência de requisitos especiais de
fadiga, esses perfis devem ser aplicados às espessuras
de ramificação superiores a 5/8 in [16 mm].
Perfis melhorados de solda que atendem os requisitos
de 2.21.6.6 e 2.21.6.7 estão descritos na Figura 3.10. Na
ausência de requisitos especiais de fadiga, esses perfis
devem ser aplicados às espessuras de ramificação
superiores a 1-1/2 in [38 mm] (não é necessário para a
carga de compressão estática).
Os detalhes pré-qualificados para soldas de chanfro em
conexões tubulares em T, Y e K, que utilizam seções da
caixa, estão também descritos na Figura 3.6. Os
detalhes anteriores estão sujeitos à restrição do
parágrafo 3.13.4.
NOTA: Ver o Comentário para orientação técnica na
seleção de um perfil desejável.
As dimensões da junta e os ângulos de chanfro não
devem variar a partir dos intervalos detalhados na
Tabela 3.6 e mostrados nas Figuras 3.6 e 3.8 através de
3.10. A superfície do talão da raiz das juntas deve ser
zero, a não ser que dimensionada de outra forma. Ela
pode ser detalhada para exceder zero ou a dimensão
especificada para não mais que 1/16 in [2 mm]. Ela não
pode ser detalhada como menor que as dimensões
especificadas.
3.13.5.1 Detalhes da junta. Os detalhes para soldas de
chanfro CJP em conexões tubulares em T, Y e K estão
descritos em 3.13.5. Esses detalhes são pré-qualificados
para SMAW e FCAW e podem também ser utilizados
para GMAW-S qualificadas em conformidade com
4.13.4.3.
3.14 Tratamento Térmico Pós-
Soldagem
O Tratamento Térmico Pós-Soldagem (PWHT) deve ser
pré-qualificado, desde que seja aprovado pelo
engenheiro e que as condições abaixo sejam
observadas.
(1) O limite mínimo de elasticidade especificado do
metal base não deve exceder 50 ksi [345 MPa].
(2) O metal base não deverá ser fabricado por
têmpera e revenimento (Q & T), têmpera e auto-
revenimento (Q & ST), termo-mecânica de
processamento controlado (TMCP) ou, quando o
trabalho a frio for utilizado para alcançar propriedades
mecânicas maiores (por exemplo, certos graus de
tubulação ASTM A-500).
(3) Não deve haver requisitos para teste de
resistência do metal base, HAZ ou metal de solda.
(4) Deve haver dados disponíveis demonstrando que
o metal de solda deve ter resistência e ductilidade
adequadas na condição de PWHT (por exemplo, como
podem ser encontrados nas especificações e
classificação relevante AWS A5.X do metal de adição
ou com o fabricante do metal de adição).
(5) O PWHT deve ser conduzido em conformidade
com 5.8.
Tabela 3.1
Metal Base Pré-qualificado — Combinações do Metal de Adição para Resistência Correspondente (ver 3.3)
G
r
u
p
o
Requisitos de Especificação do Aço Requisitos do Metal de Adição
Ponto/Limite Mínimo de
Elasticidade
Faixa de Tensão
Processo
Especificações do
Eletrodo AWS Classificação do Eletrodo
Especificações do Aço ksi MPa ksi MPa
ASTM A 36 (≤ 3/4 IN 2 mm ) 36 250 58-80 400-550
ASTM A 53 Grau B 35 240 60 min 415 min SMAW A5.1 E60XX, E70XX
ASTM A 106 Grau B 35 240 60 min 415 min
ASTM A 131 Grau A, B, CS, D, DS, E 34 235 58-75 400-520 A5.5c
E70XX-X
ASTM A 139 Grau B 35 240 60 min 415 min
ASTM A 381 Grau Y35 35 240 60 min 415 min
ASTM A 500 Grau A 33 230 45 min 310 min SAW A5.17 F6XX-EXXX, F6XX-ECXXX,
Grau B 42 290 58 min 400 min F7XX-EXXX, F7XX-ECXXX
Grau C 46 315 62 min 425 min A5.23c
F7XX-EXXX-XX,
ASTM A 501 36 250 58 min 400 min F7XX-ECXXX-XX
ASTM A 516 Grau 55 30 205 55-75 380-515
Grau 60 32 220 60-80 415-550
ASTM A 524 Grau I 35 240 60-85 415-586 GMAW A5.18 ER70S-X, E70C-XC,
Grau II 30 205 55-80 380-550 E70C-XM (Eletrodos com
I ASTM A 573 Grau 65 35 240 65-77 450-530 o sufixo -GS devem ser excluídos)
Grau 58 32 220 58-71 400-490 A5.28c
ER70S-XXX, E70C-XXX
ASTM A 709 Grau 36 (≤3/4 in 2 mm ) 36 250 58–80 400–550
ASTM A 1008 SS Grau 30 30 205 45 min. 310 min.
Grau 33 Tipo 1 33 230 48 min. 330 min. FCAW A5.20 E7XT-X, E7XT-XC, E7XT-XM
Grau 40 Tipo 1 40 275 52 min. 360 min. (os eletrodos com os sufixos -2C, -2M,
ASTM A 1011 SS Grau 30 30 205 49 min. 340 min. -3, -10, -13, -14 e -GS devem ser
Grau 33 33 230 52 min. 360 min. excluídos e os eletrodos com o sufixo
Grau 36 Tipo 1 36 250 53 min. 365 min. -11 devem ser excluídos para
Grau 40 40 275 55 min. 380 min. espessuras maiores que 1/2 in [12mm])
Grau 45 45 310 60 min. 410 min.
API 5L Grau B 35 241 60 414 A5.29c
E6XTX-X, E6XTX-XC,
Grau X42 42 290 60 414 E6XT-XM, E7XTX-X,
ABS Graus A, B, D, CS, DS 34 235 58–75 400–520 E7XTX-XC, E7XTX-XM
Grau Eb
34 235 58–75 400–520
(Continua)
AWS
D1.1/D1.1M:2010
3.
PRÉ-QUALIFICAÇÃO
DE
WPSS
Tabela 3.1 (Continuação)
Metal Base Pré-qualificado — Combinações do Metal de Adição para Resistência Correspondente (ver 3.3)
G
r
u
p
o
Requisitos de Especificação do Aço Requisitos do Metal de Adição
Ponto/Limite Mínimo
de Elasticidade
Faixa de Tensão
Processo
Especificações do
Eletrodo AWS Classificação do Eletrodo
Especificações do Aço ksi MPa ksi MPa
ASTM A 36 (≤ 3/4 IN 2 mm ) 36 250 58-80 400-550
ASTM A 131 Graus AH32, DH32, EH32 46 315 64-85 440-590
Graus AH36, DH36, EH36 51 355 71-90 490-620
ASTM A 441 40-50 275-345 60-70 415-485
ASTM A 516 Grau 65 35 240 65-85 450-585 SMAW A5.1 E7015, E7016, E7018, E7028
Grau 70 38 260 70-90 485-620
ASTM A 529 Grau 50 50 345 70–100 485–690 A5.5c
E7015-X, E7016-X, E7018-X
Grau 55 55 380 70–100 485–690
ASTM A 537 Classe 1 45-50 310-345 65-90 450-620
ASTM A 572 Grau 42 42 290 60 min. 415 min. SAW A5.17 F7XX-EXXX, F7XX-ECXXX
Grau 50 50 345 65 min. 450 min.
Grau 55 55 380 70 min. 485 min. A5.23c
F7XX-EXXX-XX,
ASTM A 588b
(4 in [100 mm] e inferior) 50 345 70 min. 485 min. F7XX-ECXXX-XX
ASTM A 595 Grau A 55 380 65 min. 450 min.
Graus B e C 60 410 70 min. 480 min.
ASTM A 606b
45-50 310-340 65 min. 450 min. GMAW A5.18 ER70S-X, E70C-XC,
ASTM A 618 Graus Ib, II, III 46-50 315-345 65 min. 450 min. E70C-XM (os eletrodos com
ASTM A 633 Grau A 42 290 63-83 430-570 o sufixo -GS devem ser excluídos)
II Graus C, D 50 345 70-90 485-620
(2-1/2 in [65 mm] e inferior)
ASTM A 709 Grau 36 (>3/4 in [20 mm]) 36 250 58–80 400–550 A5.28c
ER70S-XXX, E70C-XXX
Grau 50 50 345 65 min. 450 min.
Grau 50Wb
50 345 70 min. 485 min.
Grau 50S 50-65 345-450 65 min. 450 min. FCAW A5.20 E7XT-X, E7XT-XC, E7XT-XM
Grau HPS 50Wb
50 345 70 min. 485 min. (os eletrodos com os sufixos -2C,
ASTM A 710 Grau A, Classe 2>2 in [50mm] 50-55 345–380 60-65 415-450 -2M, -3, -10, -13, -14 e -GS devem
ASTM A 808 (2-1/2 in [65 mm] e inferior) 42 290 60 min. 415 min. ser excluídos e os eletrodos com
ASTM A 913 Grau 50 50 345 65 min. 450 min. o sufixo -11 devem ser excluídos
ASTM A 992 50-65 345–450 65 min. 450 min. para espessuras maiores que
ASTM A 1008 HSLAS Grau 45 Classe 1 45 310 60 min. 410 min. 1/2 in [12mm])
Grau 45 Classe 2 45 310 55 min. 380 min.
Grau 50 Classe 1 50 340 65 min. 450 min. A5.29c
E7XTX-X, E7XTX-XC, E7XT-XM
Grau 50 Classe 2 50 340 60 min. 410 min.
Grau 55 Classe 1 55 380 65 min. 450 min.
Grau 55 Classe 2 55 380 65 min. 450 min.
ASTM A 1008 HSLAS-F Grau 50 50 340 60 min. 410 min.
3.
PRÉ-QUALIFICAÇÃO
DE
WPSS
AWS
D1.1/D1.1M:2010
(Continua)
Tabela 3.1 (Continuação)
Metal Base Pré-qualificado — Combinações do Metal de Adição para Resistência Correspondente (ver 3.3)
G
r
u
p
o
Requisitos de Especificação do Aço Requisitos do Metal de Adição
Ponto/Limite Mínimo
de Elasticidade
Faixa de Tensão
Processo
Especificações do
Eletrodo AWS Classificação do Eletrodo
Especificações do Aço ksi MPa ksi MPa
ASTM A 1011 HSLAS Grau 45 Classe 1 45 310 60 min. 410 min.
Grau 45 Classe 2 45 310 55 min. 380 min.
Grau 50 Classe 1 50 340 65 min. 450 min.
Grau 50 Classe 2 50 340 60 min. 410 min. SMAW A5.1 E7015, E7016, E7018, E7028
Grau 55 Classe 1 55 380 70 min. 480 min.
Grau 55 Classe 2 55 380 65 min. 450 min. A5.5c
E7015-X, E7016-X, E7018-X
ASTM A 1011 HSLAS-F Grau 50 50 340 60 min. 410 min.
ASTM A 1011 SS Grau 50 50 340 65 min. 450 min.
Grau 55 55 380 70 min. 480 min. SAW A5.17 F7XX-EXXX, F7XX-ECXXX
ASTM A 1018 HSLAS Grau 45 Classe 1 45 310 60 min. 410 min.
Grau 45 Classe 2 45 310 55 min. 380 min. A5.23c
F7XX-EXXX-XX,
Grau 50 Classe 1 50 340 65 min. 450 min. F7XX-ECXXX-XX
Grau 50 Classe 2 50 340 60 min. 410 min.
Grau 55 Classe 1 55 380 70 min. 480 min. GMAW A5.18 ER70S-X, E70C-XC,
Grau 55 Classe 2 55 380 65 min. 450 min.
E70C-XM (os eletrodos com o sufixo -GS
devem ser excluídos)
II ASTM A 1018 HSLAS-F Grau 50 50 340 60 min. 410 min.
ASTM A 1018 SS Grau 30 30 205 49 min. 340 min.
Grau 33 33 230 52 min. 360 min. A5.28c
ER70S-XXX, E70C-XXX
Graus 36 36 250 53 min. 365 min.
Grau 40 40 275 55 min. 380 min.
API 2H Grau 42 42 289 62-82 427-565 FCAW A5.20 E7XT-X, E7XT-XC, E7XT-XM
Grau 50 50 345 70-90 483-620 (os eletrodos com os sufixos -2C,
API 2MT 1 Grau 50 50 345 65-90 488-620 -2M, -3, -10, -13, -14 e -GS devem
API 2W Grau 42 42-67 290-462 62 min. 427 min. Ser excluídos e os eletrodos com o
Grau 50 50-75 345-517 65 min. 448 min. sufixo -11 devem ser excluídos
Grau 50T 50-80 345-552 70 min. 483 min. para espessuras maiores que
API 2Y Grau 42 42-67 290-462 62 min. 427 min. 1/2 in [12mm])
Grau 50 50-75 345-517 65 min. 448 min.
Grau 50T 50-80 345-552 70 min. 483 min. A5.29c
E7XTX-X, E7XTX-XC, E7XT-XM
API 5L Grau X52 52 359 66 min. 455 min.
ABS Graus AH32, DH32, EH32 46 315 64-85 440-590
Graus AH36, DH36, EH36b
51 355 71-90 490-620
(Continua)
AWS
D1.1/D1.1M:2010
3.
PRÉ-QUALIFICAÇÃO
DE
WPSS
Tabela 3.1 (Continuação)
Metal Base Pré-qualificado — Combinações do Metal de Adição para Resistência Correspondente (ver 3.3)
G
r
u
p
o
Requisitos de Especificação do Aço Requisitos do Metal de Adição
Ponto/Limite Mínimo
de Elasticidade
Faixa de Tensão
Processo
Especificações do
Eletrodo AWS Classificação do Eletrodo
Especificações do Aço ksi MPa ksi MPa
API 2W Grau 60 60-90 414-621 75 min. 517 min.
API 2Y Grau 60 60-90 414-621 75 min. 517 min.
ASTM A 537 Classe 2b
46-60 315-415 70-100 485-690 SMAW A5.5c
E8015-X, E8016-X, E8018-X
ASTM A 572 Grau 60 60 415 75 min. 520 min.
Grau 65 65 450 80 min. 550 min. SAW A5.23c
F8XX-EXXX-XX,
ASTM A 633 Grau Eb
55-60 380-415 75-100 515-690 F8XX-ECXXX-XX
ASTM A 710 Grau A, Classe 2≤2 in 5 mm 60-65 415-450 72 min. 495 min.
III ASTM A 710 Grau A,Classe 3>2 in [50mm] 60-65 415-450 70–75 485–515 GMAW A5.28c
ER80S-XXX,
ASTM A 913a
Grau 60 60 415 75 min. 520 min. E80C-XXX
Grau 65 65 450 80 min. 550 min.
ASTM A 1018
HSLAS
Grau 60 Classe 2 60 410 70 min. 480 min. FCAW A5.29c
E8XTX-X, E8XTX-XC,
Grau 70 Classe 2 70 480 80 min. 550 min. E8XT-XM
ASTM A 1018
HSLAS -F
Grau 60 Classe 2 60 410 70 min. 480 min.
Grau 70 Classe 2 70 480 80 min. 550 min.
SMAW A5.5c
E9015-X, E9016-X,
E9018-X, E9018M
SAW A5.23c
F9XX-EXXX-XX,
IV ASTM A 709 Grau HPS70W 70 485 85-110 585-760 F9XX-ECXXX-XX
ASTM A 852 70 485 90-110 620-760
GMAW A5.28c
ER90S-XXX, E90C-XXX
FCAW A5.29c
E9XTX-X, E9XTX-XC, E9XT-XM
a
Os limites do aporte de calor de 5 7 não devem ser aplicados a ASTM A 913, Grau 60 ou 65
b
Os materiais com soldagem especial e WPS (por exemplo, eletrodos de baixa liga E80XX-X) podem ser necessários para nivelar a ductilidade do metal base (para aplicações envolvendo carga dinâmica ou baixa temperatura) ou
em características de corrosão atmosférica e de exposição às intempéries (ver 3 7 3)
c
Os metais de adição da família das ligas metálicas B3, B3L, B4, B4L, B5, B5L, B6, B6L, B7, B7L, B8, B8L, B9, E9015-C5L, E9015-D1, E9018-D1, E9018-D3 ou qualquer grau BXH nas AWSs A5 5, A5 23, A5 28 ou A5 29
não estão pré-qualificados para uso em condições de soldagem em bruto
Notas:
1 Nas juntas que envolvem metais de diferentes grupos, pode ser utilizado um dos seguintes metais de adição: (1) aquele que corresponde ao metal base de maior resistência; ou (2) aquele que corresponde ao metal base de menor
resistência e produz um depósito com baixo nível de hidrogênio
2 Nivelar com API padrão 2B (tubos fabricados) de acordo com o aço utilizado
3 Quando as soldas são submetidas a recozimento para redução de tensões o metal de solda depositado não deve exceder 0,05% de vanádio
4 Ver Tabelas 2 3 e 2 6 para os requisitos de tensão admissível para o metal de adição correspondente
5 As propriedades do metal de adição foram movidas para o Anexo V não obrigatório
6 Os eletrodos AWS A5M (Unidades SI) de mesma classificação podem ser utilizados no lugar da classificação do eletrodo AWS A5 (Unidades Convencionais dos EUA)
7 Qualquer uma das classificações do eletrodo para um Grupo específico (localizado à direita) pode ser utilizada para soldar quaisquer metais de base no Grupo (localizado à esquerda)
3.
PRÉ-QUALIFICAÇÃO
DE
WPSS
AWS
D1.1/D1.1M:2010
3- PRE QUALIFICAÇÃO DE WPSS AWS D1.1/D1.1M:2010
140
Tabela 3.2
Temperaturas Mínimas Pré-qualificadas de Pré-aquecimento e de Interpasse (ver 3.5)
C
a
t
e
g
o
r
i
a Especificações do Aço
Processo de
Soldagem
Espessura daparte mais espessa no
ponto de soldagem
Temperaturas Mínimas de
Pré-aquecimento e de
Interpasse
in nm F C
ASTM A 36
ASTM A 53 Grau B
ASTM A 106 Grau B
ASTM A 131
Grau A, B, CS,
D, DS, E
ASTM A 139 Grau B
ASTM A 381 Grau Y35
ASTM A 500 Grau A
Grau B
Grau C 1/8 a 3/4 3 a 20 32a
0a
ASTM A 501 incl. incl.
ASTM A 516
ASTM A 524 Graus I & II SMAW Acima de 3/4 Acima de 20 150 65
ASTM A 573 Grau 65 com outros que com 1-1/2 com 38
A ASTM A 709 Grau 36 não sejam incl. incl.
ASTM A 1008 SS Grau 30 eletrodos com
Grau 33 Tipo 1 baixo nível de Acima de 1-1/2 Acima de 38 225 110
Grau 40 Tipo 1 hidrogênio com 2-1/2 com 65
ASTM A 1011 SS Grau 30 incl. incl.
Grau 33
Grau 36 Tipo 1 Acima de 2-1/2 Acima de 65 300 150
Grau 40
Grau 45
Grau 50
Grau 55
API 5L Grau B
Grau X42
ABS
Graus A, B, D,
CS, DS
Grau E
ASTM A 36
ASTM A 53 Grau B
ASTM A 106 Grau B
ASTM A 131 Graus A, B,
CS, D, DS, E 1/8 a 3/4 3 a 20 32a
0a
AH 32 & 36 incl. incl.
DH 32 & 36
EH 32 & 36 SMAW
ASTM A 139 Grau B com eletrodos Acima de 3/4 Acima de 20 50 10
ASTM A 381 Grau Y35 com baixo nível com 1-1/2 com 38
B ASTM A 441 de hidrogênio incl. incl.
ASTM A 500 Grau A SAW,
Grau B GMAW, Acima de 1-1/2 Acima de 38 150 65
Grau C FCAW, com 2-1/2 com 65
ASTM A 501 incl. incl.
ASTM A 516 Graus 55 & 60
65 & 70 Acima de 2-1/2 Acima de 65 225 110
ASTM A 524 Graus I & II
ASTM A 529 Graus 50 & 55
AWS D1.1/D1.1M:2010 3- PRE QUALIFICAÇÃO DE WPSS
69
ASTM A 537 Classes 1 & 2
ASTM A 572 Graus 42, 50, 55
(Continua)
AWS D1.1/D1.1M:2010 3- PRE QUALIFICAÇÃO DE WPSS
70
Tabela 3.2 (continuação)
Temperaturas Mìnimas Pré-qualificadas de Pré-aquecimento e de Interpasse
(ver 3.5)
C
a
t
e
g
o
r
i
a Especificações do Aço
Processo de
Soldagem
Espessura daparte
mais espessa no ponto
de soldagem
Temperaturas
Mínimas de
Pré-aquecimento e
de Interpasse
in nm F C
ASTM A 573 Grau 65
ASTM A 588
ASTM A 595 Graus A, B, C
ASTM A 606
ASTM A 618 Graus Ib, II, III
ASTM A 633 Graus A, B
Graus C, D
ASTM A 709
Graus 36, 50, 50S,
50W,
HPS 50W
ASTM A 710 Grau A, Classe 2
(>2 in [50 mm])
ASTM A 808
ASTM A 913b
Grau 50
ASTM A 992
ASTM A 1008 HSLAS Grau 45 Classe 1
Grau 45 Classe 2
Grau 50 Classe 1
Grau 50 Classe 2
Grau 55 Classe 1
Grau 55 Classe 2 1/8 a 3/4 3 a 20 32a
0a
ASTM A 1008 HSLAS-
F
Grau 50 incl. incl.
ASTM A 1011 HSLAS Grau 45 Classe 1
Grau 45 Classe 2 SMAW
Grau 50 Classe 1 com eletrodos Acima de 3/4 Acima de 20 50 10
B Grau 50 Classe 2 com baixo nível com 1-1/2 com 38
(cont ) Grau 55 Classe 1 de hidrogênio, incl. incl.
Grau 55 Classe 2 SAW,
ASTM A 1011 HSLAS-
F
Grau 50 GMAW, Acima de 1-1/2 Acima de 38 150 65
ASTM A 1018 HSLAS Grau 45 Classe 1 FCAW com 2-1/2 com 65
Grau 45 Classe 2 incl. incl.
Grau 50 Classe 1
Grau 50 Classe 2 Acima de 2-1/2 Acima de 65 225 110
Grau 55 Classe 1
Grau 55 Classe 2
ASTM A 1018 HSLAS-
F
Grau 50
ASTM A 1018 SS Grau 30
Grau 33
Grau 36
Grau 40
API 5L Grau B
Grau X42
API Spec. 2H Graus 42, 50
API 2MT1 Grau 50
API 2W Graus 42, 50, 50T
API 2Y Graus 42, 50, 50T
ABS Graus AH 32 & 36
DH 32 & 36
EH 32 & 36
ABS Graus A, B, D,
CS, DS
Grau E
AWS D1.1/D1.1M:2010 3- PRE QUALIFICAÇÃO DE WPSS
71
Tabela 3.2 (continuação)
Temperaturas Mìnimas Pré-qualificadas de Pré-aquecimento e de Interpasse
(ver 3.5)
C
a
t
e
g
o
r
i
a Especificações do Aço Processo de Soldagem
Espessura da parte mais espessa
no ponto de soldagem
Temperaturas
Mínimas de
Pré-aquecimento
e de Interpasse
in nm F C
ASTM A 572 Graus 60, 65
ASTM A 633 Grau E
ASTM A 913b
Graus 60, 65 1/8 a 3/4 3 a 20 50 10
ASTM A 710 Grau A, Classe 2 incl. incl.
(≤2 in 5 mm )
ASTM A 710 Grau A, Classe 3 Acima de 3/4 Acima de 20 150 65
(>2 in [50 mm]) SMAW com com 1-1/2 com 38
C ASTM A 709c
Grau HPS70W
eletrodos com baixo
nível de hidrogênio,
incl. incl.
ASTM A 852c
SAW, GMAW, FCAW
ASTM A 1018
HSLAS
Grau 60, Classe 2 Acima de 1-1/2 Acima de 38 225 110
Grau 70, Classe 2 com 2-1/2 com 65
ASTM A 1018
HSLAS-F
Grau 60, Classe 2 incl. incl.
Grau 70, Classe 2
API 2W Grau 60 Acima de 2-1/2 Acima de 65 300 150
API 2Y Grau 60
API 5L Grau X52
SMAW, SAW, GMAW e
FCAW com combinações
de
eletrodos ou eletrodo-
fluxo capazes de
Grau A depositar metal
D ASTM A 710 (Todas as classes)
de solda com um teor
máximo de hidrogênio
Todas as espessuras
≥ /8 in 3 mm
32a
0a
ASTM A 913b
Graus 50, 60, 65 difusível de 8 ml/100g
(H8), quando testado de
acordo com AWS A4.3.
a
Quando a temperatura do metal base estiver abaixo de 32 F [0 C], ele deve ser pré-aquecido a uma temperatura mínima de 70 F
[20 C] e a temperatura mínima de interpasse deve ser mantida durante a soldagem.
b
As limitações do aporte de calor de 5.7 não devem ser aplicadas em ASTM A 913.
c
Para ASTM A 709 Grau HPS70W e ASTM A 852, as temperaturas máximas de pré-aquecimento e de interpasse não devem exceder
400 F [200 C], no caso de espessuras até 1-1/2 in [40 mm], inclusive, e 450 F [230 C], para espessuras maiores.
Notas:
1. Para alteração dos requisitos de pré-aquecimento para SAW com eletrodos paralelos ou múltiplos, ver 3.5.2.
2. Ver 5.12.2 e 5.6 para requisitos de temperatura ambiente e do metal base.
3. ASTM A 570 e ASTM A 607 foram excluídas.
AWS D1.1/D1.1M:2010 3- PRE QUALIFICAÇÃO DE WPSS
72
Tabela 3.3 (ver 3.7.3)
Requisitos do Metal de Adição para
Aplicações Expostas, Nuas de Aços
Resistentes à Corrosão Atmosférica
Processos
Especificações
AWS do Metal
de Adição
Eletrodos Aprovadosa
SMAW A5.5
Todos os eletrodos que
depositam metal de solda
satisfazem uma análise
B2L, C1, C1L, C2, C2L, C3
ou WX por A5.5.
SAW A5.23
Todas as combinações de
eletrodo-fluxo que
depositam metal de solda
com uma análise , Ni1, Ni2,
Ni3, Ni4 ou WX por A5.23.
FCAW A5.29
Todos os eletrodos que
depositam metal de solda
com uma análise B2L, Ni1,
Ni2, Ni3, Ni4 ou WX por
A5.29.
GMAW A5.28
Todos os eletrodos que
cumprem os requisitos de
composição do metal de
adição das análises B2L, Ga
,
Ni1, Ni2, Ni3 por A5.28.
a
O metal de solda depositado deve ter a mesma composição
química que qualquer um dos metais de solda nessa tabela.
Notas:
1. Os metais de adição devem cumprir os requisites da Tabela
3.1 além dos requisitos de composição listados acima. Pode
ser feito uso do mesmo tipo de metal de adição, que tenha
uma resistência à tração imediatamente superior, conforme
relacionado nas especificações AWS de metal de adição.
2. Os eletrodos compósitos (metal revestido internamente) são
designados da seguinte forma:
SAW: Inseir a letra “C” entre as letras “E” e “X,” por exemplo,
E7AX-ECXXX-Ni1.
GMAW: Substituir a letra “S” pela letra “C” e omitir a letra
“R,” por exemplo, E8 C-Ni1.
Tabela 3.4
Tamanho de Solda Mínimo Pré-
Qualificado de PJP (E)
(ver 3.12.2.1)
Espessura do Metal Base (T)a Tamanho
Mínimo de Soldab
in [mm] in mm
1/8 [3] a 3/16 [5] incl. 1/16 2
Acima de 3/16 [5] a 1/4 [6] incl. 1/8 3
Acima de 1/4 [6] a 1/2 [12] incl. 3/16 5
Acima de 1/2 [12] a 3/4 [20] incl. 1/4 6
Acima de 3/4 [20] a 1-1/2 [38] incl. 5/16 8
Acima de 1-1/2 [38] a 2-1/4 [57] incl. 3/8 10
Acima de 2-1/4 [57] a 6 [150] incl. 1/2 12
Acima de 6 [150] 5/8 16
a
Para processos que não tenham baixo nível de hidrogênio, sem
pré-aquecimento calculado em conformidade com 4.8.4, T é
igual à espessura da parte mais grossa unida; devem ser
utilizadas soldas em passe único. Para os processos com baixo
nível de hidrogênio e os que não têm baixo nível de
hidrogênio, estabelecidos para evitar trincas em conformidade
com 4.8.4, T é igual à espessura da parte mais fina; não devem
ser aplicados requisitos em passe único.
b
Exceto que o tamanho da solda não precisa ultrapassar a
espessura da parte mais fina unida.
Tabela 3.5
Aplicações do Detalhe de Junta
para Conexões Tubulares Pré-
qualificadas em
T-, Y- e K- com CJP
(ver 3.13.5 e Figura 3.7)
Detalhe
Intervalo Aplicável do Ângulo Diedro Local,
Ψ
A 180 a 135
B 150 a 50
C
75 a 30
40 a 15
Não pré-qualificadas para
ângulos em chanfro menores
que 30
D
Notas:
1. O detalhe da junta aplicável (A, B, C ou D) para uma parte
específica da conexão deve ser determinado pelo ângulo
diedro local, Ψ, que muda em progressão contínua em torno
do membro ramificado.
2. Os intervalos de ângulo e dimensionais dados no Detalhe A,
B, C ou D incluem as os limites de tolerância máximos
permitidos.
3. Ver Anexo K para a definição do ângulo diedro local.
AWS D1.1/D1.1M:2010 3- PRE QUALIFICAÇÃO DE WPSS
73
Tabela 3.6
Dimensões de Juntas e Ângulos de Chanfro Pré-qualificados para Soldas
em Chanfro com CJP em Conexões Tubulares em T-, Y- e K- Feitas por meio
de SMAW, GMAW-S e FCAW (ver 3.13.5)
Detalhe A
 = 180 – 135
Detalhe B
 = 150 – 50
Detalhe C
 = 75 – 30 b
Detalhe D
 = 40 – 15 b
Preparação
final ()
máx.
90 a
(Nota a)
10
mín. 45 para > 105
FCAW-S GMAW-S FCAW-S GMAW-S (Nota c)
SMAWd
FCAW-Ge
SMAWd
FCAW-Ge
W máx. 
FCAW-S 1/8 in [3 mm] 25 -40
SMAW 3/16 in [5 mm] 15 -25
(1)
1/4 in
[6 mm]
para >45
Abertura de
ajuste ou raiz
(R) 3/16 in 3/16 in 1/4 in
5/16 in
[8 mm]
máx [5 mm] [5 mm] [6 mm] para ≤45
GMAW-S 1/8 in [3 mm] 30 -40
FCAW-G 1/4 in [6 mm] 25 -30
(2) 3/8 in [10 mm] 20 -25
1/2 in [12 mm] 15 -20
mín. 1/16 in
[2 mm]
Sem mín.
para >90
1/16 in
[2 mm]
Sem mín.
para >120
1/16 in
[2 mm]
1/16 in
[2 mm]
A junta
incluiu o
ângulo  90
60 para
Ψ ≤ 105
40 ; se maior,
usar Detalhe B
máx
mín. 45
37-1/2 ; se menor
usar Detalhe C
/2 Ψ
≥ tb
≥ tb /sin Ψ
mas não precisa
exceder 1.75 tb
≥ 2 tb
Solda
concluída
≥ tb para
Ψ > 90
≥ tb /sin Ψ para
Ψ <
tw
L
≥ tb /sin Ψ
mas não precisa
exceder 1.75 tb
A solda pode ser
construída para
atender o presente
a
De outro modo, conforme necessário para obter o  exigido.
b
Não pré-qualificado para ângulos de chanfro () menores que 30 .
c
Passes iniciais de soldagem back-up até que a largura do chanfro (W) seja suficiente para garantir uma boa soldagem; a largura
necessária do chanfro para solda (W) fornecida pela soldagem back-up.
d
Esses detalhes de raiz são aplicados a SMAW e FCAW-S.
e
Esses detalhes de raiz são aplicados a GMAW-S e FCAW-G.
Notas:
1. Para GMAW-S, ver 4.13.4.3. Esses detalhes não se destinam à GMAW (transferência de metal por spray).
2. Ver Figura 3.8 para um perfil-padrão mínimo (espessura limitada).
3. Ver Figura 3.9 para perfil alternativo de ponta-filete.
4. Ver Figura 3.10 para um melhor perfil (ver 2.21.6.6 e 2 21.6.7).
AWS D1.1/D1.1M:2010 3- PRE QUALIFICAÇÃO DE WPSS
74
Tabela 3.7
Requisitos para WPS Pré-qualificadasf
(ver 3.7)
Variável Posição Tipo de Solda SMAW
SAWd
GMAW/
FCAWg
Passe único Paralelo Múltiplo
Diâmetro
máximo do
eletrodo
Filetea
5/16 in [8,0 mm]
1/8 in [3,2 mm]
Plana Chanfroa
1/4 in [6,4 mm] 1/4 in [6,4 mm]
Passe de raiz 3/16 in [4,8 mm]
Horizontal
Filete 1/4 in [6,4 mm] 1/4 in [6,4 mm]
1/8 in [3,2 mm]
Chanfro 3/16 in [4,8 mm] Requer Teste de Qualificação WPS
Vertical Todos 3/16 in [4,8 mm]b
3/32 in [2,4 mm]
Sobre-
cabeça
Todos 3/16 in [4,8 mm]b
5/64 in [2,0 mm]
Corrente
máxima
Todas Filete
Dentro da gama
de operações
indicadas pelo
fabricante do
metal de adição
1000A 1200A
Ilimitado
Dentro da gama de
operações indicadas
pelo fabricante do
metal de adição
Todas
Passe de raiz de
solda em
chanfro com
abertura
600A
700A
Passe de raiz de
solda em
chanfro sem
abertura
900A
Passes de
enchimento de
solda em
chanfro
1200A
Passe de
acabamento de
solda em
chanfro
Ilimitado
Espessura
máxima do
passe de raizd
Plana
Todos
3/8 in [10 mm]
Ilimitado
3/8 in [10 mm]
Horizontal 5/16 in [8 mm] 5/16 in [8 mm]
Vertical 1/2 in [12 mm] 1/2 in [12 mm]
Sobre-
cabeça
5/16 in [8 mm] 5/16 in [8 mm]
Espessura
máxima do
passe de
enchimento
Todas Todos 3/16 in [5 mm]
1/4 in
[6 mm]
Ilimitado 1/4 in [6 mm]
Tamanho
máximo de
solda de filete
em passe
únicoc
Plana
Filete
3/8 in [10 mm]
5/16 in
[8 mm]
5/16 in
[8 mm]
1/2 in
[12 mm]
1/2 in [12 mm]
Horizontal 5/16 in [8 mm] 3/8 in [10 mm]
Vertical 1/2 in [12 mm] 1/2 in [12 mm]
Sobre-
cabeça
5/16 in [8 mm] 5/16 in [8 mm]
Passe único Paralelo Múltiplo
Largura
máxima de
camada em
passe único
Todas (para
GMAW/
FCAW)
F & H
(para SAW)
Abertura de raiz
> 1/2 in [12
mm] ou
Camadas
divididas
Eletrodos
lateralmente
deslocados ou
camadas
divididas
Camadas
divididas
Camadas divididas
Qualquer
camada de
largura w
Camadas
divididas se
w > 5/8 in
[16 mm]
Camadas
divididas
com
eletrodos em
tandem se w
> 5/8 in [16
mm]
Se w>1 in
[25mm]
camadas
divididas
(Nota e)
a
Exceto passes de raiz
b
5/32 in [4,0 mm] para EXX14 e eletrodos com baixo nível de hidrogênio
c
Ver 3 7 3 para requisitos para soldagem sem pintura e expostas ASTM A 588
d
Ver 3 7 2 para limitações de largura-para-profundidade
e
Nas posições P, H ou SC para camadas não tubulares, divididas quando a largura w > 1 [25 mm]
f
A área sombreada indica não-aplicabilidade
g
O processo GMAW-S não deve ser pré-qualificado
AWS D1.1/D1.1M:2010 3- PRE QUALIFICAÇÃO DE WPSS
75
Tabela 3.8
Variáveis de WPSs Pré-qualificadas
Variável de WPSs Pré-qualificadas
Processos
SMAW SAW GMAW FCAW
Geral
1) Mudança no(s) processo(s) de soldagema
X X X X
2) Mudança na(s) posição(ões) de soldagem X X X X
Metal Base
3) Mudança no(s) número(s) do grupo do metal base (ver
Tabela 3.1)
X X X X
4) Mudança na categoria de preaquecimento do metal base
(ver Tabela 3.2)
X X X X
Metal de Adição
5) Mudança na(s) classificação(ões) do eletrodo X X X X
6) Mudança na(s) classificação(ões) do eletrodo/fluxo X
7) Mudança no(s) diâmetro(s) nominal do eletrodo X X X X
8) Mudança no número de eletrodos X
Parâmetros do Processo
9) Mudança na corrente elétrica
> 10% de
aumento ou
redução
> 10% de
aumento ou
redução
> 10% de
aumento ou
redução
10) Mudança no tipo de corrente (ac ou dc) ou polaridade X X X X
11) Mudança no modo de transferência X
12) Mudança na tensão elétrica
> 15% de
aumento ou
redução
> 15% de
aumento ou
redução
> 15% de
aumento ou
redução
13) Mudança na velocidade de alimentação do fio (se não
houver corrente elétrica controlada)
> 10% de
aumento ou
redução
> 10% de
aumento ou
redução
> 10% de
aumento ou
redução
14) Mudança na velocidade de deslocamento
> 25% de
aumento ou
redução
> 25% de
aumento ou
redução
> 25% de
aumento ou
redução
Gás de Proteção
15) Mudança na composição nominal do gás de proteção X
X (apenas para
FCAW-G)
16) Redução na taxa de fluxo do gás de proteção > 25%
> 25% (apenas
para FCAW-G)
17) Aumento na taxa de fluxo do gás > 50%
> 50% (apenas
para FCAW-G)
(Continua)
AWS D1.1/D1.1M:2010 3- PRE QUALIFICAÇÃO DE WPSS
77
Figura 3.1— Nó de soldagem em que a profundidade e a largura excedem a
largura da face da solda (ver 3.7.2)
MIN L PARA
E = 0,7 t E = t E = 1,07 t Notas:
1. t = espessura da parte mais fina.
2. L = tamanho mínimo (ver 2.25.1.3, que pode
requerer um tamanho de solda aumentado, no caso
de outras combinações que não sejam um metal base
de 36 ksi [250 MPa] e eletrodos de 70 ksi [485 MPa]).
3. Abertura de raiz de 0 in para 3/16 in [5 mm] (ver
5 22).
4. Não pré-qualificado para φ < 30°. Para φ < 60°, as
dimensões da perda de Z na Tabela 2 9 são aplicáveis.
Ver tabela 4.10 para os requisitos do posto para teste
de qualificação de soldador.
5. Ver 2.24.1.2 para limitações em β = d/D.
6. Ψ = ângulo diedro.
CALCANHAR < 60 1,5 t 1,5 t MAIOR QUE
1,5 t OU 1,4 t + Z
LATERAL ≤ 100 1 t 1,4 t 1,5 t
LATERAL 100-110 1,1 t 1,6 t 1,75 t
LATERAL 110-120 1,1 t 1,6 t 1,75 t
PONTA > 120 BISEL 1 t BISEL 1,4 t BISEL COMPLETO
CHANFRO DE 60-
90
Figura 3.2—Juntas tubulares pré-qualificadas de soldagem de filete
feitas por meio de SMAW, GMAW e FCAW (ver 3.9.2)
AWS D1.1/D1.1M:2010 3- PRE QUALIFICAÇÃO DE WPSS
78
Legenda para as figuras 3.3 e 3.4
Símbolos para tipos de juntas
B – junta de topo
C – junta de ângulo
T – junta em T
BC – junta de topo ou de ângulo
TC – junta em T ou de ângulo
BTC – junta de topo, em T ou de ângulo
Processos de soldagem
SMAW – Soldagem a Arco de Metal Revestido
GMAW – Soldagem Mig/Mag
FCAW – Soldagem a Arco com Arame Tubular
SAW – Soldagem a Arco Submerso
Posições de soldagem
F – plana
H – horizontal
V – vertical
OH – sobre-cabeça
Símbolos para espessura e penetração do metal base
P – PJP
L – espessura limitada – CJP
U – espessura ilimitada – CJP
Símbolos para tipos de solda
1 – chanfro quadrado
2 – chanfro em V simples
3 – chanfro em X
4 – chanfro em bisel simples
5 – chanfro em bisel duplo
6 – chanfro em U
7 – chanfro em duplo U
8 – chanfro em meio J
9 – chanfro em J duplo
10 – chanfro em bisel curvado
11 – chanfro em V curvado
Dimensões
R = Abertura de raiz
,  = Ângulo de abertura do chanfro
f = Face de raiz
r = Raio de chanfro em meio J ou em U
S, S1, S2 = Solda em Chanfro com PJP
Profundidade de chanfro
E, E1, E2 = Solda em Chanfro com PJP
Tamanhos correspondendo a S, S1,
S2, respectivamente
Símbolos para processos de soldagem, se não for SMAW
S – SAW
G – GMAW
F – FCAW
Denominação de juntas
As letras minúsculas, por exemplo, a, b, c etc., são usadas para
diferenciar entre as juntas que, de outra forma, teriam uma mesma
denominação.
Notas para as figuras 3.3 e 3.4
a
Não pré-qualificado para GMAW-S nem GTAW.
b
A junta deve ser soldada apenas de um lado.
c
A aplicação cíclica de cargas impõe restrições quanto ao uso desse detalhe no caso de juntas de topo em posição plana (ver 2.18.2).
d
Raiz com goivagem por trás para sondar o metal antes de soldar o segundo lado.
e
Juntas detalhadas SMAW podem ser utilizadas para os processos GMAW e FCAW pré-qualificados (exceto GMAW-S).
f
Tamanho mínimo de solda (E) como mostrado na tabela 3.4. S, como especificado nos desenhos.
g
Se as soldas de filete são usadas em estruturas estaticamente carregadas para reforçar soldas em chanfro em juntas em T e de ângulo,
estas devem ser igual a T1/4, mas não precisa exceder 3/8 in [10 mm]. As soldas em chanfro em juntas em T e de ângulo de estruturas
ciclicamente carregadas devem ser reforçadas com soldas de filete igual a T1/4, não precisa exceder 3/8 in [10 mm].
h
As soldas em chanfro duplo podem ter chanfros com profundidade desigual, mas a profundidade do chanfro menos pronunciado não
deve ser menor que um quarto de espessura da parte mais fina unida.
i
As soldas em chanfro duplo podem ter chanfros com profundidade desigual, desde que estes estejam em conformidade com os limites
da Nota f. Também o tamanho de solda (E) aplica-se individualmente em cada chanfro.
j
A orientação de ambos os membros nas juntas pode variar de 135 a 180 nas juntas de topo, ou de 45 a 135 nas juntas de ângulo, ou
ainda de 45 a 90 nas juntas em T.
k
No caso das juntas de ângulo, a preparação do chanfro externo pode ser em um ou ambos os membros, desde que a configuração básica
do chanfro não seja alterada e a distância adequada da aresta seja mantida para dar suporte às operações de soldagem sem fusão
excessiva da aresta.
l
O tamanho de solda (E) deve se basear em juntas soldadas niveladas.
m
No caso de soldas de chanfro em V curvado e soldas de chanfro em bisel curvado para seções tubulares retangulares, o raio r deve ser
duas vezes a espessura da parede.
n
No caso de soldas de chanfro em V curvado para superfícies com diferentes raios r, deve ser utilizado o menor
AWS D1.1/D1.1M:2010 3- PRE QUALIFICAÇÃO DE WPSS
79
Ver nota na página 77
Solda em chanfro
quadrado (1)
Junta de topo (B)
Process
o de
soldage
m
Denominaç
ão
da junta
Espessura do
Metal Base
(U = ilimitado)
Preparação em Chanfro
Posições de
soldagem
permitidas
Tamanho
de solda
(E)
Nota
s
T1 T2
Abertura de
raiz
Tolerâncias
Como
detalhado
(ver 3.12.3)
Como
ajustado
(ver 3.12.3)
SMAW
B-P1a 1/8 ― R = 0 a 1/16 + 1/16, –0  1/16 Todas T1 – 1/32 b
B-P1c
1/4
máx.
―
R = T1 mín.
2
+ 1/16, –0  1/16 Todas
T1
2
b
GMAW
FCAW
B-P1a-GF 1/8 ― R = 0 a 1/16 + 1/16, –0  1/16 Todas T1 – 1/32 b, e
B-P1c-GF
1/4
máx.
―
R = T1 mín.
2
+ 1/16, –0  1/16 Todas
T1
2
b, e
Solda em chanfro quadrado (1)
Junta de topo (B)
E1 + E2 NÃO DEVE EXCEDER
Processo
de
soldagem
Denominação
da junta
Espessura do Metal
Base
(U = ilimitado)
Preparação em Chanfro
Posições de
soldagem
permitidas
Tamanho
de solda
(E1 + E2) Notas
T1 T2
Abertura
de raiz
Tolerâncias
Como
detalhado
(ver 3.12.3)
Como
ajustado
(ver 3.12.3)
SMAW B-P1b 1/4 máx. ―
R = T1
2
+ 1/16, –0  1/16 Todas
3T1
4
GMAW
FCAW
B-P1b-GF 1/4 máx. ―
R = T1
2
+ 1/16, –0  1/16 Todas
3T1
4
e
Figura 3.3 - Detalhes de Junta de Solda em Chanfro pré-qualificado de PJP
(ver 3.12) (Dimensões em polegadas (in)
AWS D1.1/D1.1M:2010 3- PRE QUALIFICAÇÃO DE WPSS
80
Ver nota na página 77
Junta de ângulo (C)
Solda em chanfro em V simples (2)
Junta de topo (B)
Processo de
soldagem
Denominação
da junta
Espessura do Metal
Base (U = ilimitado)
Preparação em Chanfro
Posições de
soldagem
permitidas
Tamanho
de solda
(E) Notas
T1 T2
Abertura de raiz
Face de raiz
Ângulo de
abertura do
chanfro
Tolerâncias
Como
detalhado
(ver
3.12.3)
Como
ajustado
(ver
3.12.3)
SMAW BC-P2 1/4 mín. U
R = 0
f = 1/32 mín.
 = 60
+ 1/16, –0
+U, –0
+10 , –0
+1/8,
±1/16
1/16
+10 , –5
Todas S b, e, f, j
GMAW
FCAW
BC-P2-GF 1/4 mín. U
R = 0
f = 1/8 mín.
 = 60
+ 1/16, –0
+U, –0
+10 , –0
+1/8,
±1/16
1/16
+10 , –5
Todas S a, b, f, j
SAW BC-P2-S
7/16
mín.
U
R = 0
f = 1/4 mín.
 = 60
0
+U, –0
+10 , –0
+ 1/16, –0
1/16
+10 , –5
p S b, f, j
Solda em chanfro em X (3)
Junta de topo (B)
Processo de
soldagem
Denominação
da junta
Espessura do Metal
Base (U = ilimitado)
Preparação em Chanfro
Posições de
soldagem
permitidas
Tamanho
de solda
(E1 + E2) Notas
T1 T2
Abertura de raiz
Face de raiz
Ângulo de
abertura do
chanfro
Tolerâncias
Como
detalhado
(ver
3.12.3)
Como
ajustado
(ver
3.12.3)
SMAW B-P3 1/2 mín. ―
R = 0
f = 1/8 mín.
 = 60
+ 1/16, –0
+U, –0
+10 , –0
+1/8,
±1/16
1/16
+10 , –5
Todas S1 + S2 e, f, i, j
GMAW
FCAW
B-P3-GF 1/2 mín. ―
R = 0
f = 1/8 mín.
 = 60
+ 1/16, –0
+U, –0
+10 , –0
+1/8,
±1/16
1/16
+10 , –5
Todas S1 + S2 a, f, i, j
SAW B-P3-S 3/4 mín. ―
R = 0
f = 1/4 mín.
 = 60
0
+U, –0
+10 , –0
+ 1/16, –0
1/16
+10 , –5
P S1 + S2 f, i, j
Figura 3.3 (Continuação)- Detalhes de Junta de Solda em Chanfro pré-
qualificado de PJP (ver 3.12) (Dimensões em polegadas (in)
AWS D1.1/D1.1M:2010 3- PRE QUALIFICAÇÃO DE WPSS
Ver nota na página 77
Solda em chanfro em bisel
simples (4)
Junta de topo (B)
Junta em T (T)
Junta de ângulo (C)
Processo
de
soldagem
Denominação
da junta
Espessura do Metal
Base (U = ilimitado)
Preparação em Chanfro
Posições de
soldagem
permitidas
Tamanho
de solda
(E) Notas
T1 T2
Abertura de raiz
Face de raiz
Ângulo de
abertura do
chanfro
Tolerâncias
Como
detalhado
(ver 3.12.3)
Como
ajustado
(ver 3.12.3)
SMAW BTC-P4 U U
R = 0
f = 1/8 mín.
 = 45
+ 1/16, –0
+U, –0
+10 , –0
+1/8, ±1/16
1/16
+10 , –5
Todas S–1/8
b, e, f,
g, j, k
GMAW
FCAW
BTC-P4-GF 1/4 mín. U
R = 0
f = 1/8 mín.
 = 45
+ 1/16, –0
+U, –0
+10 , –0
+1/8, ±1/16
1/16
+10 , –5
P, H S
a, b, f,
g, j, k
V, SC S–1/8
SAW TC-P4-S 7/16 mín. U
R = 0
f = 1/4 mín.
 = 60
0
+U, –0
+10 , –0
+ 1/16, –0
1/16
+10 , –5
P S
b, f, g, j,
k
Solda em chanfro em bisel duplo (5)
Junta de topo (B)
Junta em T (T)
Junta de ângulo (C)
Processo de
soldagem
Denominação da
junta
Espessura do
Metal Base
(U = ilimitado)
Preparação em Chanfro
Posições de
soldagem
permitidas
Tamanho
de solda (E1
+ E2) Notas
T1 T2
Abertura de
raiz
Face de raiz
Ângulo de
abertura do
chanfro
Tolerâncias
Como
detalhado
(ver 3.12.3)
Como
ajustado
(ver 3.12.3)
SMAW BTC-P5
5/16
mín.
U
R = 0
f = 1/8 mín.
 = 45
+ 1/16, –0
+U, –0
+10 , –0
+1/8, –1/16
1/16
+10 , –5
Todas
S1 + S2
–1/4
e, f, g, i,
j, k
GMAW
FCAW
BTC-P5-GF
1/2
mín.
U
R = 0
f = 1/8 mín.
 = 45
+ 1/16, –0
+U, –0
+10 , –0
+1/8, –1/16
1/16
+10 , –5
P, H S1 + S2
a, f, g, i,
j, k
V, SC
S1 + S2
–1/4
SAW TC-P5-S
3/4
mín.
U
R = 0
f = 1/4 mín.
 = 60
0
+U, –0
+10 , –0
+ 1/16, –0
1/16
+10 , –5
P S1 + S2 f, g, i, j, k
Figura 3.3 (continuação) - Detalhes de Junta de Solda em Chanfro
pré-qualificado de PJP
(ver 3.12) (Dimensões em polegadas (in)
AWS D1.1/D1.1M:2010 3- PRE QUALIFICAÇÃO DE WPSS
82
Ver nota na página 77
Solda em chanfro em U (6)
Junta de topo (B)
Junta de ângulo (C)
Processo
de
soldagem
Denominação
da junta
Espessura do
Metal Base
(U = ilimitado)
Preparação em Chanfro
Posições de
soldagem
permitidas
Tamanh
o de
solda (E) Notas
T1 T2
Abertura de raiz
Face de raiz
Raio de bisel
Ângulo de abertura
do chanfro
Tolerâncias
Como
detalhado
(ver 3.12.3)
Como
ajustado
(ver 3 12.3)
SMAW BC-P6 1/4 mín. U
R = 0
f = 1/32 mín.
r = 1/4
 = 45
+ 1/16, –0
+U, –0
+1/4, –0
+10 , –0
+1/8, –1/16
1/16
1/16
+10 , –5
Todas S
b, e, f,
j
GMAW
FCAW
BC-P6-GF 1/4 mín. U
R = 0
f = 1/8 mín.
r = 1/4
 = 20
+ 1/16, –0
+U, –0
+1/4, –0
+10 , –0
+1/8, –1/16
1/16
1/16
+10 , –5
Todas S
a, b, f,
j
SAW BC-P6-S
7/16
mín.
U
R = 0
f = 1/4 mín.
r = 1/4
 = 20
0
+U, –0
+1/4, –0
+10 , –0
+ 1/16, –0
1/16
1/16
+10 , –5
P S b, f, j
Solda em chanfro em duplo U (7)
Junta de topo (B)
Processo
de
soldagem
Denominaçã
o da junta
Espessura do Metal
Base (U = ilimitado)
Preparação em Chanfro
Posições
de
soldagem
permitidas
Tamanho
de solda
(E1 + E2) Notas
T1 T2
Abertura de raiz
Face de raiz
Raio de bisel
Ângulo de abertura
do chanfro
Tolerâncias
Como
detalhado
(ver 3 12.3)
Como
ajustado
(ver
3 12.3)
SMAW B-P7 1/2 mín. 
R = 0
f = 1/8 mín.
r = 1/4
 = 45
+ 1/16, –0
+U, –0
+1/4, –0
+10 , –0
+1/8, –1/16
1/16
1/16
+10 , –5
Todas S1 + S2
e, f, i,
j
GMAW
FCAW
B-P7-GF 1/2 mín. 
R = 0
f = 1/8 mín.
r = 1/4
 = 20
+ 1/16, –0
+U, –0
+1/4, –0
+10 , –0
+1/8, –1/16
1/16
1/16
+10 , –5
Todas S1 + S2
a, f, i,
j
SAW B-P7-S 3/4 mín. 
R = 0
f = 1/4 mín.
r = 1/4
 = 20
0
+U, –0
+1/4, –0
+10 , –0
+ 1/16, –0
1/16
1/16
+10 , –5
P S1 + S2 f, i, j
Figura 3.3 (continuação) - Detalhes de Junta de Solda em Chanfro pré-
qualificado de PJP (ver 3.12) (Dimensões em polegadas (in)
AWS D1.1/D1.1M:2010 3- PRE QUALIFICAÇÃO DE WPSS
83
Ver nota na página 77
Solda em chanfro em J (8)
Junta de topo (B)
Junta em T (T)
Junta de ângulo (C)
Processo
de
soldagem
Denominaçã
o da junta
Espessura do
Metal Base
(U = ilimitado)
Preparação em Chanfro
Posições de
soldagem
permitidas
Tamanho
de solda (E) Notas
T1 T2
Abertura de raiz
Face de raiz
Raio de bisel
Ângulo de abertura do
chanfro
Tolerâncias
Como detalhado
(ver 3.12.3)
Como
ajustado
(ver 3.12.3)
SMAW
B-P8 1/4 mín. 
R = 0
f = 1/8 mín.
r = 3/8
 = 30
+ 1/16, –0
+U, –0
+1/4, –0
+10 , –0
+1/8, –1/16
1/16
1/16
+10 , –5
Todas S e, f, g, j, k
TC-P8 1/4 mín. U
R = 0
f = 1/8 mín.
r = 3/8
oc = 30 
ic = 45 
+ 1/16, –0
+U, –0
+1/4, –0
+10 , –0
+10 , –0
+1/8, –1/16
1/16
1/16
+10 , –5
+10 , –5
Todas S e, f, g, j, k
GMAW
FCAW
B-P8-GF 1/4 mín. 
R = 0
f = 1/8 mín.
r = 3/8
 = 30
+ 1/16, –0
+U, –0
+1/4, –0
+10 , –0
+1/8, –1/16
1/16
1/16
+10 , –5
Todas S a, f, g, j, k
TC-P8-GF 1/4 mín. U
R = 0
f = 1/8 mín.
r = 3/8
oc = 30 
ic = 45 
+ 1/16, –0
+U, –0
+1/4, –0
+10 , –0
+10 , –0
+1/8, –1/16
1/16
1/16
+10 , –5
+10 , –5
Todas S a, f, g, j, k
SAW
B-P8-S
7/16
mín.

R = 0
f = 1/4 mín.
r = 1/2
 = 20
0
+U, –0
+1/4, –0
+10 , –0
+ 1/16, –0
1/16
1/16
+10 , –5
P S f, g, j, k
TC-P8-S
7/16
mín.
U
R = 0
f = 1/4 mín.
r = 1/2
 = 20 
ic = 45 
0
+U, –0
+1/4, –0
+10 , –0
+10 , –0
+ 1/16, –0
1/16
1/16
+10 , –5
+10 , –5
P S f, g, j, k

oc = Ângulo de abertura do chanfro do canto externo.

ic = Ângulo de abertura do chanfro do canto interno.
Figura 3.3 (continuação)—Detalhes de Junta de Solda em Chanfro pré-
qualificado de PJP (ver 3.12) (Dimensões em polegadas (in)
AWS D1.1/D1.1M:2010 3- PRE QUALIFICAÇÃO DE WPSS
84
Ver nota na página 77
Solda em chanfro em J duplo (9)
Junta de topo (B)
Junta em T (T)
Junta de ângulo (C)
Processo
de
soldagem
Denominação
da junta
Espessura do
Metal Base
(U = ilimitado)
Preparação em Chanfro
Posições de
soldagem
permitidas
Tamanho
de solda
(E1 + E2) Notas
T1 T2
Abertura de raiz
Face de raiz
Raio de bisel
Ângulo de abertura do
chanfro
Tolerâncias
Como
detalhado
(ver 3.12.3)
Como
ajustado
(ver 3.12.3)
SMAW
B-P9
1/2
mín.

R = 0
f = 1/8 mín.
r = 3/8
 = 30
+ 1/16, –0
+U, –0
+1/4, –0
+10 , –0
+1/8, –1/16
1/16
1/16
+10 , –5
Todas S1 + S2
e, f, g, i,
j, k
TC-P9
1/2
mín.
U
R = 0
f = 1/8 mín.
r = 3/8
oc = 30 
ic = 45 
+ 1/16, –0
+U, –0
+1/4, –0
+10 , –0
+10 , –0
+1/8, –1/16,
1/16
1/16
+10 , –5
+10 , –5
Todas S1 + S2
e, f, g, i,
j, k
GMAW
FCAW
B-P9-GF
1/2
mín.

R = 0
f = 1/8 mín.
r = 3/8
 = 30
+ 1/16, –0
+U, –0
+1/4, –0
+10 , –0
+1/8, –1/16
1/16
1/16
+10 , –5
Todas S1 + S2
a, f, g, i,
j, k
TC-P9-GF
1/2
mín.
U
R = 0
f = 1/8 mín.
r = 3/8
oc = 30 
ic = 45 
0
+U, –0
+1/4, –0
+10 , –0
+10 , –0
+ 1/16, –0
1/16
1/16
+10 , –5
+10 , –5
Todas S1 + S2
a, f, g, i,
j, k
SAW
B-P9-S
3/4
mín.

R = 0
f = 1/4 mín.
r = 1/2
 = 20
0
+U, –0
+1/4, –0
+10 , –0
+ 1/16, –0
1/16
1/16
+10 , –5
P S1 + S2
f, g, i, j,
k
TC-P9-S
3/4
mín.
U
R = 0
f = 1/4 mín.
r = 1/2
oc = 20 
ic = 45 
0
+U, –0
+1/4, –0
+10 , –0
+10 , –0
+ 1/16, –0
1/16
1/16
+10 , –5
+10 , –5
P S1 + S2
f, g, i, j,
k

oc = Ângulo de abertura do chanfro do canto externo.

ic = Ângulo de abertura do chanfro do canto interno.
Figura 3.3 (continuação) - Detalhes de Junta de Solda em Chanfro pré-
qualificado de PJP (ver 3.12) (Dimensões em polegadas (in)
AWS D1.1/D1.1M:2010 3- PRE QUALIFICAÇÃO DE WPSS
85
Ver notas acima 77
Solda em chanfro em bisel curvado (10)
Junta de topo (B)
Junta em T (T)
Junta de ângulo (C)
Processo de
soldagem
Denominação
da junta
Espessura do Metal
Base
(U = ilimitado)
Preparação em Chanfro
Posições de
soldagem
permitidas
Tamanho
de solda
(E) Notas
T1 T2 T3
Abertura de
raiz
Face de raiz
Raio de
curvatura
Tolerâncias
Como
detalhado
(ver
3.12.3)
Como
ajustado
(ver 3.12.3)
SMAW
FCAW-S
BTC-P10
3/16
mín.
U
T1
mín.
R = 0
f = 3/16 mín.
r = 3T1mín.
2
+ 1/16, –0
+U, –0
+U, –0
+1/8, –1/16
+U, –1/16
+U, –0
Todas 5/16 r
e, g, j,
l
GMAW
FCAW-G
BTC-P10-GF
3/16
mín.
U
T1
mín.
R = 0
f = 3/16 mín.
r = 3T1mín.
2
+ 1/16, –0
+U, –0
+U, –0
+1/8, –1/16
+U, –1/16
+U, –0
Todas 5/8 r
a, g, j,
l, m
SAW B-P10-S
1/2
mín.
N/A
1/2
mín.
R = 0
f = 1/2 mín.
r = 3T1mín.
2
0
+U, –0
+U, –0
+ 1/16, –0
+U, –1/16
+U, –0
P 5/16 r
g, j, l,
m
Figura 3.3 (continuação)—Detalhes de Junta de Solda em Chanfro pré-qualificado
de PJP. (ver 3.12) (Dimensões em polegadas (in)
AWS D1.1/D1.1M:2010 3- PRE QUALIFICAÇÃO DE WPSS
86
Ver notas acima 77
Solda em chanfro em V curvado (11)
Junta de topo (B)
Processo de
soldagem
Denominação
da junta
Espessura do
Metal Base
(U = ilimitado)
Preparação em Chanfro
Posições de
soldagem
permitidas
Tamanho
de solda
(E) Notas
T1 T2
Abertura de raiz
Face de raiz
Raio de curvatura
Tolerâncias
Como
detalhado
(ver 3.12.3)
Como
ajustado
(ver 3.12.3)
SMAW
FCAW-S
B-P11
3/16
mín.
T1 mín.
R = 0
f = 3/16 mín.
r = 3T1mín.
2
+ 1/16, –0
+U, –0
+U, –0
+1/8, –1/16
+U, –1/16
+U, –0
Todas 5/8 r
e, j, l,
m, n
GMAW
FCAW-G
B-P11-GF
3/16
mín.
T1 mín.
R = 0
f = 3/16 mín.
r = 3T1mín.
2
+ 1/16, –0
+U, –0
+U, –0
+1/8, –1/16
+U, –1/16
+U, –0
Todas 3/4 r
a, j, l,
m, n
SAW B-P11-S
1/2
mín.
T1 mín.
R = 0
f = 1/2 mín.
r = 3T1mín.
2
0
+U, –0
+U, –0
+ 1/16, –0
+U, –1/16
+U, –0
P 1/2 r
j, l, m,
n
Figura 3.3 (continuação)—Detalhes de Junta de Solda em Chanfro pré-qualificado
de PJP
(ver 3.12) (Dimensões em polegadas (in)
AWS D1.1/D1.1M:2010 3- PRE QUALIFICAÇÃO DE WPSS
87
Ver notas acima 77
Solda em chanfro quadrado (1)
Junta de topo (B)
TODAS AS DIMENSÕES EM mm
Processo
de
soldagem
Denominação
da junta
Espessura do Metal
Base
(U = ilimitado)
Preparação em Chanfro
Posições de
soldagem
permitidas
Tamanho
de solda
(E) Notas
T1 T2
Abertura de
raiz
Tolerâncias
Como
detalhado
(ver 3.12.3)
Como
ajustado
(ver 3.12.3)
SMAW
B-P1a 3 ― R = 0 a 2 + 2, –0  2 Todas T1 – 1 b
B-P1c
6
máx.
―
R = T1 mín.
2
+ 2, –0  2 Todas
T1
2
b
GMAW
FCAW
B-P1a-GF 3 ― R = 0 a 2 + 2, –0  2 Todas T1 – 1 b, e
B-P1c-GF
6
máx.
―
R = T1 mín.
2
+ 2, –0  2 Todas
T1
2
b, e
Solda em chanfro quadrado (1)
Junta de topo (B)
E1 + E2 NÃO DEVE EXCEDER
TODAS AS DIMENSÕES EM mm
Processo
de
soldagem
Denominação
da junta
Espessura do Metal
Base (U = ilimitado)
Preparação em Chanfro
Posições de
soldagem
permitidas
Tamanho
de solda
(E1 + E2) Notas
T1 T2
Abertura
de raiz
Tolerâncias
Como
detalhado
(ver 3.12.3)
Como
ajustado
(ver 3.12.3)
SMAW B-P1b 6 máx. ―
R = T1
2
+ 2, –0  2 Todas
3T1
4
GMAW
FCAW
B-P1b-GF 6 máx. ―
R = T1
2
+ 2, –0  2 Todas
3T1
4
e
Figura 3.3 (continuação) - Detalhes de Junta de Solda em Chanfro pré-qualificado
de PJP
(ver 3.12) (Dimensões em milímetros)
AWS D1.1/D1.1M:2010 3- PRE QUALIFICAÇÃO DE WPSS
88
Ver notas acima 77
Solda de chanfro em V simples (2)
Junta de topo (B)
Junta de ângulo (C)
TODAS AS DIMENSÕES EM mm
Processo
de
soldagem
Denominação
da junta
Espessura do Metal Base
(U = ilimitado)
Preparação em Chanfro
Posições de
soldagem
permitidas
Tamanho
de solda
(E) Notas
T1 T2
Abertura de raiz
Face de raiz
Ângulo de abertura
do chanfro
Tolerâncias
Como
detalhado
(ver 3.12.3)
Como
ajustado
(ver 3.12.3)
SMAW BC-P2 6 mín. U
R = 0
f = 1 mín.
 = 60
+ 2, –0
+U, –0
+10 , –0
+3, –2
2
+10 , –5
Todas S b, e, f, j
GMAW
FCAW
BC-P2-GF 6 mín. U
R = 0
f = 3 mín.
 = 60
+ 2, –0
+U, –0
+10 , –0
+3, –2
2
+10 , –5
Todas S a, b, f, j
SAW BC-P2-S 11 mín. U
R = 0
f = 6 mín.
 = 60
0
+U, –0
+10 , –0
+3, –2
2
+10 , –5
P S b, f, j
Solda de chanfro em X (3)
Junta de topo (B)
TODAS AS DIMENSÕES EM mm
Processo de
soldagem
Denominação
da junta
Espessura do Metal Base
(U = ilimitado)
Preparação em Chanfro
Posições de
soldagem
permitidas
Tamanho
de solda
(E1 + E2) Notas
T1 T2
Abertura de raiz
Face de raiz
Ângulo de abertura
do chanfro
Tolerâncias
Como
detalhado
(ver 3.12.3)
Como
ajustado
(ver
3 12.3)
SMAW B-P3 12 mín. ―
R = 0
f = 3 mín.
 = 60
+ 2, –0
+U, –0
+10 , –0
+3, –2
2
+10 , –5
Todas S1 + S2 e, f, i, j
GMAW
FCAW
B-P3-GF 12 mín. ―
R = 0
f = 3 mín.
 = 60
+ 2, –0
+U, –0
+10 , –0
+3, –2
2
+10 , –5
Todas S1 + S2 a, f, i, j
SAW B-P3-S 20 mín. ―
R = 0
f = 6 mín.
 = 60
0
+U, –0
+10 , –0
+2, –0
2
+10 , –5
P S1 + S2 f, i, j
Figura 3.3 (continuação) - Detalhes de Junta de Solda em Chanfro pré-qualificado
de PJP
(ver 3.12) (Dimensões em milímetros)
AWS D1.1/D1.1M:2010 3- PRE QUALIFICAÇÃO DE WPSS
Ver notas acima (na pagina)
Solda de chanfro em bisel simples (4)
Junta de topo (B)
Junta em T (T)
Junta de ângulo (C)
TODAS AS DIMENSÕES EM mm
Processo
de
soldagem
Denominação
da junta
Espessura do Metal
Base (U = ilimitado)
Preparação em Chanfro
Posições
de
soldagem
permitidas
Tamanho
de solda
(E) Notas
T1 T2
Abertura de raiz
Face de raiz
Ângulo de
abertura do
chanfro
Tolerâncias
Como
detalhado
(ver
3.12.3)
Como
ajustado
(ver
3.12.3)
SMAW BTC-P4 U U
R = 0
f = 3 mín.
 = 45
+ 2, –0
+U, –0
+10 , –0
+3, –2
2
+10 , –5
Todas S–3
b, e, f,
g, j, k
GMAW
FCAW
BTC-P4-GF 6 mín. U
R = 0
f = 3 mín.
 = 45
+ 2, –0
+U, –0
+10 , –0
+3, –2
2
+10 , –5
P, H S
a, b, f,
g, j, k
V, SC S–3
SAW TC-P4-S 11 mín. U
R = 0
f = 6 mín.
 = 60
0
+U, –0
+10 , –0
+2, –0
2
+10 , –5
P S
b, f, g,
j, k
Solda de chanfro em bisel duplo (5)
Junta de topo (B)
Junta em T (T)
Junta de ângulo (C)
TODAS AS DIMENSÕES EM mm
Processo
de
soldagem
Denominação
da junta
Espessura do Metal
Base (U = ilimitado)
Preparação em Chanfro
Posições
de
soldagem
permitidas
Tamanho
de solda
(E1 + E2) Notas
T1 T2
Abertura de
raiz
Face de raiz
Ângulo de
abertura do
chanfro
Tolerâncias
Como
detalhado
(ver 3.12.3)
Como
ajustado
(ver
3.12.3)
SMAW BTC-P5 8 mín. U
R = 0
f = 3 mín.
 = 45
+ 2, –0
+U, –0
+10 , –0
+3, –2
2
+10 , –5
Todas
S1 + S2
–6
e, f, g,
i, j, k
GMAW
FCAW
BTC-P5-GF 12 mín. U
R = 0
f = 3 mín.
 = 45
+ 2, –0
+U, –0
+10 , –0
+3, –2
2
+10 , –5
P, H S1 + S2
a, f, g,
i, j, k
V, SC
S1 + S2
–6
SAW TC-P5-S 20 mín. U
R = 0
f = 6 mín.
 = 60
0
+U, –0
+10 , –0
+2, –0
2
+10 , –5
P S1 + S2
f, g, i,
j, k
Figura 3.3 (continuação) - Detalhes de Junta de Solda em Chanfro pré-qualificado
de PJP
(ver 3.12) (Dimensões em milímetros)
AWS D1.1/D1.1M:2010 3- PRE QUALIFICAÇÃO DE WPSS
Ver notas acima 77
Solda de chanfro em U (6)
Junta de topo (B)
Junta de ângulo (C)
TODAS AS DIMENSÕES EM mm
Processo
de
soldagem
Denominação
da junta
Espessura do Metal Base
(U = ilimitado)
Preparação em Chanfro
Posições de
soldagem
permitidas
Tamanho
de solda
(E) Notas
T1 T2
Abertura de raiz
Face de raiz
Raio de bisel
Ângulo de
abertura do
chanfro
Tolerâncias
Como
detalhado
(ver 3.12.3)
Como
ajustado
(ver 3.12.3)
SMAW BC-P6 6 mín. U
R = 0
f = 1 mín.
r = 6
 = 45
+ 2, –0
+U, –0
+6, –0
+10 , –0
+3, –2
2
2
+10 , –5
Todas S b, e, f, j
GMAW
FCAW
BC-P6-GF 6 mín. U
R = 0
f = 3 mín.
r = 6
 = 20
+ 2, –0
+U, –0
+6, –0
+10 , –0
+3, –2
2
2
+10 , –5
Todas S a, b, f, j
SAW BC-P6-S 11 mín. U
R = 0
f = 6 mín.
r = 6
 = 20
0
+U, –0
+6, –0
+10 , –0
+ 2, –0
2
2
+10 , –5
P S b, f, j
Solda de chanfro em duplo U (7)
Junta de topo (B)
TODAS AS DIMENSÕES EM mm
Processo
de
soldagem
Denominação
da junta
Espessura do Metal Base
(U = ilimitado)
Preparação em Chanfro
Posições de
soldagem
permitidas
Tamanho
de solda
(E1 + E2) Notas
T1 T2
Abertura de raiz
Face de raiz
Raio de bisel
Ângulo de
abertura do
chanfro
Tolerâncias
Como
detalhado
(ver 3.12.3)
Como
ajustado
(ver 3.12.3)
SMAW B-P7 12 mín. 
R = 0
f = 3 mín.
r = 6
 = 45
+ 2, –0
+U, –0
+6, –0
+10 , –0
+3, –2
2
2
+10 , –5
Todas S1 + S2 e, f, i, j
GMAW
FCAW
B-P7-GF 12 mín. 
R = 0
f = 3 mín.
r = 6
 = 20
+ 2, –0
+U, –0
+6, –0
+10 , –0
+3, –2
2
2
+10 , –5
Todas S1 + S2 a, f, i, j
SAW B-P7-S 20 mín. 
R = 0
f = 6 mín.
r = 6
 = 20
0
+U, –0
+6, –0
+10 , –0
+ 2, –0
2
2
+10 , –5
P S1 + S2 f, i, j
Figura 3.3 (continuação) - Detalhes de Junta de Solda em Chanfro pré-qualificado
de PJP
(ver 3.12) (Dimensões em milímetros)
AWS D1.1/D1.1M:2010 3- PRE QUALIFICAÇÃO DE WPSS
91
Solda de chanfro em J (8)
Junta de topo (B)
Junta em T (T)
Junta de ângulo (C)
TODAS AS DIMENSÕES EM mm
Processo
de
soldagem
Denominação
da junta
Espessura do
Metal Base
(U = ilimitado)
Preparação em Chanfro
Posições de
soldagem
permitidas
Tamanho de
solda (E) Notas
T1 T2
Abertura de
raiz
Face de raiz
Raio de bisel
Ângulo de
abertura do
chanfro
Tolerâncias
Como
detalhado
(ver
3.12.3)
Como
ajustado
(ver 3.12.3)
SMAW
B-P8
6
mín.

R = 0
f = 3 mín.
r = 10
 = 30
+ 2, –0
+U, –0
+6, –0
+10 , –0
+3, –2
2
2
+10 , –5
Todas S e, f, g, j, k
TC-P8
6
mín.
U
R = 0
f = 3 mín.
r = 10
oc = 30 
ic = 45 
+ 2, –0
+U, –0
+6, –0
+10 , –0
+10 , –0
+3, –2
2
2
+10 , –5
+10 , –5
Todas S e, f, g, j, k
GMAW
FCAW
B-P8-GF
6
mín.

R = 0
f = 3 mín.
r = 10
 = 30
+ 2, –0
+U, –0
+6, –0
+10 , –0
+3, –2
2
2
+10 , –5
Todas S a, f, g, j, k
TC-P8-GF
6
mín.
U
R = 0
f = 3 mín.
r = 10
oc = 30 
ic = 45 
+ 2, –0
+U, –0
+6, –0
+10 , –0
+10 , –0
+3, –2
2
2
+10 , –5
+10 , –5
Todas S a, f, g, j, k
SAW
B-P8-S
11
mín.

R = 0
f = 6 mín.
r = 12
 = 20
0
+U, –0
+6, –0
+10 , –0
+ 2, –0
2
2
+10 , –5
P S f, g, j, k
TC-P8-S
11
mín.
U
R = 0
f = 6 mín.
r = 12
 = 20 
ic = 45 
0
+U, –0
+6, –0
+10 , –0
+10 , –0
+ 2, –0
2
2
+10 , –5
+10 , –5
P S f, g, j, k

oc = Ângulo de abertura do chanfro do canto externo.

ic = Ângulo de abertura do chanfro do canto interno.
Figura 3.3 (continuação) - Detalhes de Junta de Solda em Chanfro pré-qualificado
de PJP (ver 3.12) (Dimensões em milímetros)
AWS D1.1/D1.1M:2010 3- PRE QUALIFICAÇÃO DE WPSS
92
Ver notas acima 77
Solda de chanfro em J duplo (9)
Junta de topo (B)
Junta em T (T)
Junta de ângulo (C)
TODAS AS DIMENSÕES EM mm
Processo
de
soldagem
Denominação
da junta
Espessura do
Metal Base
(U = ilimitado)
Preparação em Chanfro
Posições de
soldagem
permitidas
Tamanho
de solda (E1
+ E2) Notas
T1 T2
Abertura
de raiz
Face de raiz
Raio de bisel
Ângulo de
abertura do
chanfro
Tolerâncias
Como
detalhado
(ver 3.12.3)
Como
ajustado
(ver 3.12.3)
SMAW
B-P9 12 mín. 
R = 0
f = 3 mín.
r = 10
 = 30
+ 2, –0
+U, –0
+6, –0
+10 , –0
++3, –2
2
2
+10 , –5
Todas S1 + S2
e, f, g, i,
j, k
TC-P9 12 mín. U
R = 0
f = 3 mín.
r = 10
oc = 30 
ic = 45 
+ 2, –0
+U, –0
+6, –0
+10 , –0
+3, –2
2
2
+10 , –5
+10 , –5
Todas S1 + S2
e, f, g, i,
j, k
GMAW
FCAW
B-P9-GF 6 mín. 
R = 0
f = 3 mín.
r = 10
 = 30
+ 2, –0
+U, –0
+6, –0
+10 , –0
+3, –2
2
2
+10 , –5
Todas S1 + S2
a, f, g, i,
j, k
TC-P9-GF 6 mín. U
R = 0
f = 3 mín.
r = 10
oc = 30 
ic = 45 
0
+U, –0
+6, –0
+10 , –0
+3, –2
2
2
+10 , –5
+10 , –5
Todas S1 + S2
a, f, g, i,
j, k
SAW
B-P9-S 20 mín. 
R = 0
f = 6 mín.
r = 12
 = 20
0
+U, –0
+6, –0
+10 , –0
+ 2, –0
2
2
+10 , –5
P S1 + S2
f, g, i, j,
k
TC-P9-S 20 mín. U
R = 0
f = 6 mín.
r = 12
oc = 20 
ic = 45 
0
+U, –0
+6, –0
+10 , –0
+ 2, –0
2
2
+10 , –5
+10 , –5
P S1 + S2
f, g, i, j,
k

oc = Ângulo de abertura do chanfro do canto externo.

ic = Ângulo de abertura do chanfro do canto interno.
Figura 3.3 (continuação) - Detalhes de Junta de Solda em Chanfro pré-qualificado
de PJP
(ver 3.12) (Dimensões em milímetros)
AWS D1.1/D1.1M:2010 3- PRE QUALIFICAÇÃO DE WPSS
93
Ver notas acima 77
Solda de chanfro em bisel curvado (10)
Junta de topo (B)
Junta em T (T)
Junta de ângulo (C)
TODAS AS DIMENSÕES EM mm
Processo
de
soldage
m
Denominaçã
o da junta
Espessura do Metal
Base
(U = ilimitado)
Preparação em Chanfro
Posições de
soldagem
permitidas
Tamanho
de solda
(E) Notas
T1 T2 T3
Abertura
de raiz
Face de raiz
Raio de
curvatura
Tolerâncias
Como
detalhado
(ver 3.12.3)
Como
ajustado
(ver
3.12.3)
SMAW
FCAW-S
BTC-P10
5
mín
.
U
T1
mín
.
R = 0
f = 5 mín.
r = 3T1mín.
2
+ 2, –0
+U, –0
+U, –0
+3, –2
+U, –2
+U, –0
Todas 5/16 r e, g, j, l
GMAW
FCAW-
G
BTC-P10-GF
5
mín
.
U
T1
mín
.
R = 0
f = 5 mín.
r = 3T1mín.
2
+ 2, –0
+U, –0
+U, –0
+3, –2
+U, –2
+U, –0
Todas 5/8 r
a, g, j, l,
m
SAW B-P10-S
12
mín
.
12
mín
.
N/A
R = 0
f = 12 mín.
r = 3T1mín.
2
0
+U, –0
+U, –0
+ 2, –0
+U, –2
+U, –0
P 5/16 r
g, j, l,
m
Figura 3.3 (continuação) - Detalhes de Junta de Solda em Chanfro pré-
qualificado de PJP
(ver 3.12) (Dimensões em polegadas (in))
AWS D1.1/D1.1M:2010 3- PRE QUALIFICAÇÃO DE WPSS
94
Ver notas acima (na pagina)
Solda de chanfro em V curvado (11)
Junta de topo (B)
TODAS AS DIMENSÕES EM mm
Processo
de
soldagem
Denominação
da junta
Espessura do
Metal Base
(U = ilimitado)
Preparação em Chanfro
Posições de
soldagem
permitidas
Tamanho
de solda
(E) Notas
T1 T2
Abertura
de raiz
Face de raiz
Raio de
curvatura
Tolerâncias
Como
detalhado
(ver 3.12.3)
Como
ajustado
(ver 3.12.3)
SMAW
FCAW-S
B-P11
5
mín.
T1
mín.
R = 0
f = 5 mín.
r = 3T1mín.
2
+ 2, –0
+U, –0
+U, –0
+3, –2
+U, –2
+U, –0
Todas 5/8 r
e, j, l, m,
n
GMAW
FCAW-
G
B-P11-GF
5
mín.
T1
mín.
R = 0
f = 5 mín.
r = 3T1mín.
2
+ 2, –0
+U, –0
+U, –0
+3, –2
+U, –2
+U, –0
Todas 3/4 r
a, j, l, m,
n
SAW B-P11-S
12
mín.
T1
mín.
R = 0
f = 12 mín.
r = 3T1mín.
2
0
+U, –0
+U, –0
+ 2, –0
+U, –2
+U, –0
P 1/2 r j, l, m, n
Figura 3.3 (continuação) - Detalhes de Junta de Solda em Chanfro pré-
qualificado de PJP
(ver 3.12) (Dimensões em polegadas (in))
AWS D1.1/D1.1M:2010 3- PRE QUALIFICAÇÃO DE WPSS
95
Ver notas acima 77
Solda em chanfro quadrado (1)
Junta de topo (B)
Junta de ângulo (C)
Processo
de
soldagem
Denominação
da junta
Espessura do Metal Base
(U = ilimitado)
Preparação em Chanfro
Posições
de
soldagem
permitidas
Gás de
proteção
para
FCAW Notas
T1 T2
Abertura
de raiz
Tolerâncias
Como
detalhado
(ver 3.13.1)
Como
ajustado
(ver 3.13.1)
SMAW
B-L1a 1/4 máx. ― R = T1 + 1/16, –0 + 1/4, –1/16 Todas ― e, j
C-L1a 1/4 máx. U R = T1 + 1/16, –0 + 1/4, –1/16 Todas ― e, j
GMAW
FCAW
B-L1a-GF 3/8 máx. ― R = T1 + 1/16, –0 + 1/4, –1/16 Todas
Não
exigido
a, j
Solda em chanfro quadrado (1)
Junta de topo (B)
Processo
de
soldagem
Denominação
da junta
Espessura do
Metal Base
(U = ilimitado)
Preparação em Chanfro
Posições de
soldagem
permitidas
Gás de proteção
para FCAW Notas
T1 T2
Abertura
de raiz
Tolerâncias
Como
detalhado
(ver
3.13.1)
Como
ajustado
(ver
3.13.1)
SMAW B-L1b 1/4 máx. ―
R = T1
2
+ 1/16, –0
+ 1/16, –
1/8
Todas ― d, e, j
GMAW
FCAW
B-L1b-GF 3/8 máx. ―
R = 0 a
1/8
+ 1/16, –0
+ 1/16, –
1/8
Todas Não exigido a, d, j
SAW B-L1-S 3/8 máx. ― R = 0 0 + 1/16, –0 P ― J
SAW B-L1a-S 5/8 máx. ― R = 0 0 + 1/16, –0 P ― d, j
Figura 3.4—Detalhes de Junta de Solda em Chanfro pré-qualificado de CJP -
(ver 3.13) (Dimensões em polegadas)
AWS D1.1/D1.1M:2010 3- PRE QUALIFICAÇÃO DE WPSS
96
Ver notas acima 77
Solda em chanfro quadrado (1)
Junta em T (T)
Junta de ângulo (C)
Processo
de
soldagem
Denominação
da junta
Espessura do
Metal Base
(U = ilimitado)
Preparação em Chanfro
Posições de
soldagem
permitidas
Gás de
proteção para
FCAW Notas
T1 T2
Abertura de
raiz
Tolerâncias
Como
detalhado
(ver 3.13.1)
Como
ajustado
(ver 3 13.1)
SMAW TC-L1b 1/4 máx. U
R = T1
2
+ 1/16, –0 +1/16, –1/8 Todas ― d, e, g
GMAW
FCAW
TC-L1-GF 3/8 máx. U R = 0 a 1/8 + 1/16, –0 +1/16, –1/8 Todas Não exigido a, d, g
SAW TC-L1-S 3/8 máx. U R = 0 0 + 1/16, –0 P ― d, g
Solda de chanfro em V simples (2)
Junta de topo (B)
Tolerâncias
Como
detalhado
(ver 3.13.1)
Como
ajustado
(ver 3 13.1)
R = +1/16, –0 +1/4, –1/16
 = +10 , –0 +10 , –5
Processo de
soldagem
Denominação
da junta
Espessura do
Metal Base
(U = ilimitado)
Preparação em Chanfro
Posições
de
soldagem
permitidas
Gás de
proteção
para
FCAW Notas
T1 T2 Abertura de raiz
Ângulo de abertura do
chanfro
SMAW B-U2a U ―
R = 1/4  = 45 Todas ― e, j
R = 3/8  = 30 P, V, SC ― e, j
R = 1/2  = 20 P, V, SC ― e, j
GMAW
FCAW
B-U2a-GF U ―
R = 3/16  = 30 P, V, SC Exigido a, j
R = 3/8  = 30 P, V, SC
Não
exigido
a, j
R = 1/4  = 45 P, V, SC
Não
exigido
a, j
SAW B-L2a-S 2 máx. ― R = 1/4  = 30 P ― j
SAW B-U2-S ― ― R = 5/8  = 20 P ― j
Figura 3.4 (continuação) - Detalhes de Junta de Solda em Chanfro pré-
qualificado de CJP
(ver 3.13) (Dimensões em polegadas)
AWS D1.1/D1.1M:2010 3- PRE QUALIFICAÇÃO DE WPSS
97
Ver notas acima 77
Solda de chanfro em V simples (2)
Junta de ângulo (C)
Tolerâncias
Como detalhado
(ver 3 13 1)
Como
ajustado
(ver 3 13 1)
R = +1/16, –0 +1/4, –1/16
 = +10 , –0 +10 , –5
Processo de
soldagem
Denominação
da junta
Espessura do Metal
Base (U = ilimitado)
Preparação em Chanfro
Posições
de
soldagem
permitidas
Gás de
proteção
para
FCAW Notas
T1 T2 Abertura de raiz
Ângulo de abertura do
chanfro
SMAW C-U2a U U
R = 1/4  = 45 Todas ― e, j
R = 3/8  = 30 P, V, SC ― e, j
R = 1/2  = 20 P, V, SC ― e, j
GMAW
FCAW
C-U2a-GF U U
R = 3/16  = 30 P, V, SC Exigido a
R = 3/8  = 30 P, V, SC
Não
exigido
a, j
R = 1/4  = 45 P, V, SC
Não
exigido
a, j
SAW C-L2a-S 2 máx U R = 1/4  = 30 P ― j
SAW C-U2-S U U R = 5/8  = 20 P ― j
Solda de chanfro em V simples (2)
Junta de topo (B)
Processo de
soldagem
Denominação
da junta
Espessura do Metal Base
(U = ilimitado)
Preparação em Chanfro
Posições de
soldagem
permitidas
Gás de
proteção
para
FCAW Notas
T1 T2
Abertura de raiz
Face de raiz
Ângulo de
abertura do
chanfro
Tolerâncias
Como
detalhado
(ver 3 13 1)
Como
ajustado
(ver 3 13 1)
SMAW B-U2 U ―
R = 0 a 1/8
f = 0 a 1/8
 = 60
+ 1/16, –0
+ 1/16, –0
+10 , –0
+1/16, –1/8
Não
limitado
+10 , –5
Todas ― d, e, j
GMAW
FCAW
B-U2-GF U ―
R = 0 a 1/8
f = 0 a 1/8
 = 60
+ 1/16, –0
+ 1/16, –0
+10 , –0
+1/16, –1/8
Não
limitado
+10 , –5
Todas
Não
exigido
a, d, j
SAW BC-L2c-S
Acima de 1/2 a 1 ―
R = 0
f = 1/4 máx
 = 60
R = 0
f = +0, –f
 = +10 , –
0
+ 1/16, –0
1/16
+10 , –5
P ― d, j
Acima de 1 a 1-1/2 ―
R = 0
f = 1/2 máx
 = 60
Acima de 1-1/2 a 2 ―
R = 0
f = 5/8 máx
 = 60
Figura 3.4 (continuação) - Detalhes de Junta de Solda em Chanfro pré-
qualificado de CJP -
(ver 3.13) (Dimensões em polegadas)
AWS D1.1/D1.1M:2010 3- PRE QUALIFICAÇÃO DE WPSS
98
Ver notas acima 77
Solda de chanfro em V simples (2)
Junta de ângulo (C)
Processo
de
soldagem
Denominação
da junta
Espessura do Metal
Base (U = ilimitado)
Preparação em Chanfro
Posições
de
soldagem
permitidas
Gás de
proteção
para FCAW Notas
T1 T2
Abertura de raiz
Face de raiz
Ângulo de
abertura do
chanfro
Tolerâncias
Como
detalhado
(ver 3 13 1)
Como
ajustado
(ver 3 13 1)
SMAW C-U2 U U
R = 0 a 1/8
f = 0 a 1/8
 = 60
+ 1/16, –0
+ 1/16, –0
+10 , –0
+1/16, –1/8
Não limitado
+10 , –5
Todas ― d, e, g, j
GMAW
FCAW
C-U2-GF U U
R = 0 a 1/8
f = 0 a 1/8
 = 60
+ 1/16, –0
+ 1/16, –0
+10 , –0
+1/16, –1/8
Não limitado
+10 , –5
Todas Não exigido a, d, g, j
SAW C-U2b-S U U
R = 0 a 1/8
f = 1/4 máx
 = 60
0
+0, –1/4
+10 , –0
+ 1/16, –0
1/16
+10 , –5
P ― d, g, j
Solda de chanfro em X (3)
Junta de topo (B)
Tolerâncias
Como
detalhado
(ver 3 13 1)
Como
ajustado
(ver 3 13 1)
R = 0 +1/4, –0
f = 0 +1/16, –0
 = +10 , –0 +10 , –5
Espaçador
SAW 0 +1/16, –0
SMA
W
0 +1/8, –0
Processo de
soldagem
Denominação
da junta
Espessura do Metal Base
(U = ilimitado)
Preparação em Chanfro
Posições
de
soldage
m
permitid
as
Gás de
proteçã
o para
FCAW Notas
T1 T2 Abertura de raiz Face de raiz
Ângulo de
abertura do
chanfro
SMAW B-U3a
U
Espaçador = 1/8
 R
―
R = 1/4 f = 0 a 1/8  = 45 Todas ―
d, e, h,
j
R = 3/8 f = 0 a 1/8  = 30 P, V, SC ―
R = 1/2 f = 0 a 1/8  = 20 P, V, SC ―
SAW B-U3a-S
U
Espaçador = 1/4
 R
― R = 5/8 f = 0 a 1/4  = 20 P ― d,h, j
Figura 3.4 (continuação) - Detalhes de Junta de Solda em Chanfro pré-
qualificado de CJP - (ver 3.13) (Dimensões em polegadas)
AWS D1.1/D1.1M:2010 3- PRE QUALIFICAÇÃO DE WPSS
99
Ver notas acima (na pagina)
Solda de chanfro em X (3)
Junta de topo (B)
Para B-U3c-S apenas
T1 S1
Acima de até
1-3/8
2 2-1/2
2-1/2 3 1-3/4
3 3-5/8 2-1/8
3-5/8 4 2-3/8
4 4-3/4 2-3/4
4-3/4 5-1/2 3-1/4
5-1/2 6-1/4 3-3/4
Para T1 > 6-1/4 ou T1 ≤ 2
S1 = 2/3 (T1 – 1/4)
Processo
de
soldagem
Denominação
da junta
Espessura do Metal
Base (U = ilimitado)
Preparação em Chanfro
Posições
de
soldagem
permitidas
Gás de
proteção
para
FCAW Notas
T1 T2
Abertura de raiz
Face de raiz
Ângulo de abertura
do chanfro
Tolerâncias
Como
detalhado
(ver 3 13 1)
Como ajustado
(ver 3 13 1)
SMAW B-U3b
U ―
R = 0 a 1/8
f = 0 a 1/8
 =  = 60
+ 1/16, –0
+ 1/16, –0
+10 , –0
+1/16, –1/8
Não limitado
+10 , –5
Todas ― d, e, h, j
GMAW
FCAW
B-U3-GF Todas
Não
exigido
a, d, h, j
SAW B-U3c-S U ―
R = 0
f = 1/4 mín
 =  = 60
+ 1/16, –0
+ 1/16, –0
+10 , –0
+1/16, –0
+1/4, –0
P ― d,h, j
Para encontrar S1 ver tabela acima S2 = T1 – (S1 + f)
Solda de chanfro em
bisel simples (4)
Junta de topo (B)
Tolerâncias
Como detalhado
(ver 3 13 1)
Como ajustado
(ver 3 13 1)
R = +1/16, –0 +1/4, –1/16
 = +10 , –0 +10 , –5
Processo
de
soldagem
Denominação
da junta
Espessura do Metal Base
(U = ilimitado)
Preparação em Chanfro
Posições
de
soldagem
permitidas
Gás de
proteção
para
FCAW Notas
T1 T2 Abertura de raiz
Ângulo de abertura do
chanfro
SMAW B-U4a U ―
R = 1/4  = 45 Todas ― c, e, j
R = 3/8  = 30 Todas ― c, e, j
GMAW
FCAW
B-U4a-GF U ―
R = 3/16  = 30 Todas Exigido a, c, j
R = 1/4  = 45 Todas
Não
exigido
a, c, j
R = 3/8  = 30 P, H
Não
exigido
a, c, j
SAW B-U4a-S U ―
R = 3/8  = 30
P ― c, j
R = 1/4  = 45
Figura 3.4 (continuação) - Detalhes de Junta de Solda em Chanfro pré-
qualificado de CJP - (ver 3.13) (Dimensões em polegadas)
AWS D1.1/D1.1M:2010 3- PRE QUALIFICAÇÃO DE WPSS
100
Ver notas acima 77
Solda de chanfro em bisel simples (4)
Junta em T (T)
Junta de ângulo (C)
Tolerâncias
Como detalhado
(ver 3 13 1)
Como ajustado
(ver 3 13 1)
R = +1/16, –0 +1/4, –1/16
 = +10 , –0 +10 , –5
Processo
de
soldagem
Denominação
da junta
Espessura do Metal Base
(U = ilimitado)
Preparação em Chanfro
Posições
de
soldagem
permitidas
Gás de
proteção
para
FCAW Notas
T1 T2 Abertura de raiz
Ângulo de abertura do
chanfro
SMAW TC-U4a U U
R = 1/4  = 45 Todas ― e, g, j, k
R = 3/8  = 30 P, V, SC ― e, g, j, k
GMAW
FCAW
TC-U4a-GF U U
R = 3/16  = 30 Todas Exigido a, g, j, k
R = 3/8  = 30 P
Não
exigido
a, g, j, k
R = 1/4  = 45 Todas
Não
exigido
a, g, j, k
SAW TC-U4a-S U U
R = 3/8  = 30
P ― g, j, k
R = 1/4  = 45
Solda de chanfro em bisel simples (4)
Junta de topo (B)
Processo
de
soldagem
Denominação
da junta
Espessura do
Metal Base
(U = ilimitado)
Preparação em Chanfro
Posições de
soldagem
permitidas
Gás de
proteção para
FCAW Notas
T1 T2
Abertura de raiz
Face de raiz
Ângulo de abertura do
chanfro
Tolerâncias
Como
detalhado
(ver 3 13 1)
Como
ajustado
(ver 3 13 1)
SMAW B-U4b U ―
R = 0 a 1/8
f = 0 a 1/8
 = 45
+ 1/16, –0
+ 1/16, –0
+10 , –0
+1/16, –1/8
Não limitado
+10 , –5
Todas ―
c, d, e,
j
GMAW
FCAW
B-U4b-GF U ― Todas Não exigido
a, c, d,
j
SAW B-U4b-S U ―
R = 0
f = 1/4 máx
 = 60
0
+0, –1/8
+10 , –0
+ 1/4, –0
1/16
+10 , –5
P ― c, d, j
Figura 3.4 (continuação) - Detalhes de Junta de Solda em Chanfro pré-
qualificado de CJP (ver 3.13) (Dimensões em polegadas)
AWS D1.1/D1.1M:2010 3- PRE QUALIFICAÇÃO DE WPSS
101
Ver notas acima (na pagina)
Solda de chanfro em bisel simples (4)
Junta em T (T)
Junta de ângulo (C)
Processo de
soldagem
Denominação
da junta
Espessura do Metal
Base (U = ilimitado)
Preparação em Chanfro
Posições
de
soldagem
permitidas
Gás de
proteção
para FCAW Notas
T1 T2
Abertura de raiz
Face de raiz
Ângulo de abertura
do chanfro
Tolerâncias
Como
detalhado
(ver 3 13 1)
Como
ajustado
(ver 3 13 1)
SMAW TC-U4b U U
R = 0 a 1/8
f = 0 a 1/8
 = 45
+ 1/16, –0
+ 1/16, –0
+10 , –0
+1/16, –1/8
Não
limitado
+10 , –5
Todas ―
d, e, g,
j, k
GMAW
FCAW
TC-U4b-GF U U Todas
Não
exigido
a, d, g,
j, k
SAW TC-U4b-S U U
R = 0
f = 1/4 máx
 = 60
0
+0, –1/8
+10 , –0
+ 1/4, –0
1/16
+10 , –5
F ―
d, g, j,
k
Solda de chanfro em bisel simples (4)
Junta de topo (B)
Junta em T (T)
Junta de ângulo (C)
Tolerâncias
Como
detalhado
(ver 3 13 1)
Como
ajustado
(ver 3 13 1)
R = 0 +1/4, –0
f = +1/16, –0 1/16
 = +10 , –
0
+10 , –5
Espaçador +1/16, –0 +1/8, –0
Processo
de
soldagem
Denominação
da junta
Espessura do Metal Base
(U = ilimitado)
Preparação em Chanfro
Posições
de
soldagem
permitidas
Gás de
proteção
para
FCAW Notas
T1 T2
Abertura de
raiz Face de raiz
Ângulo de
abertura do
chanfro
SMAW
B-U5b
U
Espaçador
= 1/8  R
― R = 1/4 f = 0 a 1/8  = 45 Todas
― c, d,
e, h, j
TC-U5a
U
Espaçador
= 1/4  R
U
R = 1/4 f = 0 a 1/8  = 45 Todas ―
d, e,
g, h,
j, k
R = 3/8 f = 0 a 1/8  = 30 P, SC ―
d, e,
g, h,
j, k
Figura 3.4 (continuação) - Detalhes de Junta de Solda em Chanfro pré-
qualificado de CJP (ver 3.13) (Dimensões em polegadas
AWS D1.1/D1.1M:2010 3- PRE QUALIFICAÇÃO DE WPSS
102
Ver notas na página 140
Solda de chanfro em bisel duplo (5)
Junta de topo (B)
Processo de
soldagem
Denominação da
junta
Espessura do Metal Base
(U = ilimitada) Preparação em Chanfro
Posições de
soldagem
permitidas
Gás de
proteção para
FCAW Notas
T1 T2
Abertura de raiz
Face de raiz
Ângulo de abertura do
chanfro
Tolerâncias
Como
detalhado
(ver 3 13 1)
Como ajustado
(ver 3 13 1)
SMAW B-U5a U ―
R = 0 a 1/8
f = 0 a 1/8
 = 45
 = 0 a 15
+ / 6, ‒
+ / 6, ‒
 +  +10
‒
+ / 6, ‒ /8
Não limitado
 +  +10
‒5
Todas ―
c, d, e, h,
j
GMAW
FCAW
B-U5-GF U ―
R = 0 a 1/8
f = 0 a 1/8
 = 45
 = 0 a 15
+ / 6, ‒
+ / 6, ‒
 +  =
+10 , ‒
+ / 6, ‒ /8
Não limitado
 +  =
+10 , ‒5
Todas Não Requerido
a, c, d, h,
j
Solda de chanfro em bisel duplo (5)
Junta em T (T)
Junta de ângulo (C)
Processo de
soldagem
Denominação da
junta
Espessura do Metal
Base
(U = ilimitada) Preparação em Chanfro
Posições de soldagem
permitidas
Gás de
proteção para
FCAW Notas
T1 T2
Abertura de
raiz
Face de raiz
Ângulo de
abertura do
chanfro
Tolerâncias
Como
detalhado
(ver 3 13 1)
Como ajustado
(ver 3 13 1)
SMAW TC-U5b U U
R = 0 a 1/8
f = 0 a 1/8
 = 45
+ / 6, ‒
+ / 6, ‒
+10 , ‒
+ / 6, ‒ /8
Não limitado
+10 , ‒5
Todas ―
d, e, g,
h, j, k
GMAW
FCAW
TC-U5-GF U U Todas
Não
Requerido
a, d, g,
h, j, k
SAW TC-U5-S U U
R = 0
f = 1/4 máx
 = 60
0
+ , ‒3/ 6
+10 , ‒
+ / 6, ‒
1/16
+10 , ‒5
P ―
d, g, h,
j, k
Figura 3.4 (continuação) - Detalhes Pré-Qualificados de Juntas Soldadas em
Chanfro CJP (ver 3.13) (Dimensões em polegadas (in)
AWS D1.1/D1.1M:2010 3- PRE QUALIFICAÇÃO DE WPSS
103
Ver notas na página 140
Solda de chanfro em U (6)
Junta de topo (B)
Junta de ângulo (C)
Tolerâncias
Como detalhado
(ver 3 13 1)
Como ajustado
(ver 3 13 1)
R + / 6, ‒ + / 6, ‒ /8
 = +10 , ‒ +10 , ‒5
f = 1/16 Não limitado
r + /8, ‒ + /8, ‒
Processo de
soldagem
Denominação da
junta
Espessura do Metal Base
(U = ilimitada) Preparação em Chanfro
Posições de
soldagem
permitidas
Gás de
proteção para
FCAW Notas
T1 T2
Abertura de
raiz
Ângulo de
abertura do
chanfro
Face de
raiz
Raio do
bisel
SMAW
B-U6 U ―
R = 0 a 1/8  = 45 f = 1/8 r = 1/4 Todas ― d, e, j
R = 0 a 1/8  = 20 f = 1/8 r = 1/4 P, SC ― d, e, j
C-U6 U U
R = 0 a 1/8  = 45 f = 1/8 r = 1/4 Todas ― d, e, g, j
R = 0 a 1/8  = 20 f = 1/8 r = 1/4 P, SC ― d, e, g, j
GMAW
FCAW
B-U6-GF U ― R = 0 a 1/8  = 20 f = 1/8 r = 1/4 Todas Não Requerido a, d, j
C-U6-GF U U R = 0 a 1/8  = 20 f = 1/8 r = 1/4 Todas Não Requerido a, d, g, j
Solda de chanfro em duplo U
(7)
Junta de topo (B)
Tolerâncias
Como detalhado
(ver 3 13 1)
Como ajustado
(ver 3 13 1)
Para B-U7 e B-U7-GF
R + / 6, ‒ + / 6, ‒ /8
 = +10 , ‒ +10 , ‒5
f + / 6, ‒ Não limitado
r + /4, ‒ 1/16
Para B-U7-S
R = +0 + / 6, ‒
 = +10 , ‒ +10 , ‒5
f + , ‒ /4 1/16
r = +1/4, ‒ 1/16
Processo de
soldagem
Denominação da
junta
Espessura do Metal Base
(U = ilimitada) Preparação em Chanfro
Posições de
soldagem
permitidas
Gás de
proteção para
FCAW Notas
T1 T2
Abertura de
raiz
Ângulo de
abertura do
chanfro
Face de
raiz
Raio do
bisel
SMAW B-U7 U ―
R = 0 a 1/8  = 45 f = 1/8 r = 1/4 Todas ― d, e, h, j
R = 0 a 1/8  = 20 f = 1/8 r = 1/4 P, SC ― d, e, h, j
GMAW
FCAW
B-U7-GF U ― R = 0 a 1/8  = 20 f = 1/8 r = 1/4 Todas Não Requerido a, d, h, j
SAW B-U7-S U ― R = 0  = 20
f = 1/4
máx
r = 1/4 P ― d, h, j
Figura 3.4 (continuação) - Detalhes Pré-Qualificados de Juntas Soldadas em
Chanfro CJP (ver 3.13) (Dimensões em polegadas (in)
AWS D1.1/D1.1M:2010 3- PRE QUALIFICAÇÃO DE WPSS
104
Ver notas na página 140
Solda de chanfro em J (8)
Junta de topo (B)
Tolerâncias
Como detalhado
(ver 3 13 1)
Como ajustado
(ver 3 13 1)
B-U8 e B-U8-GF
R + / 6, ‒ + / 6, ‒ /8
 = +10 , ‒ +10 , ‒5
f + /8, ‒ Não limitado
r + /4, ‒ 1/16
Para B-U8-S
R = +0 + /4, ‒
 = +10 , ‒ +10 , ‒5
f + , ‒ /8 1/16
r + /4, ‒ 1/16
Processo de
soldagem
Denominação da
junta
Espessura do Metal Base
(U = ilimitada)
Preparação em Chanfro
Posições de
soldagem
permitidas
Gás de
proteção para
FCAW
Notas
T1 T2
Abertura de
raiz
Ângulo de
abertura do
chanfro
Face de
raiz
Raio do
bisel
SMAW B-U8 U ― R = 0 a 1/8  = 45 f = 1/8 r = 3/8 Todas ― c, d, e, j
GMAW
FCAW
B-U8-GF U ― R = 0 a 1/8  = 30 f = 1/8 r = 3/8 Todas Não Requerido a, c, d, j
SAW B-U8-S U ― R = 0  = 45
f = 1/4
máx
r = 3/8 P ― c, d, j
Solda de chanfro em J (8)
Junta em T (T)
Junta de ângulo (C)
Tolerâncias
Como detalhado
(ver 3 13 1)
Como ajustado
(ver 3 13 1)
TC-U8a e TC-U8a-GF
R + / 6, ‒ + / 6, ‒ /8
 = +10 , ‒ +10 , ‒5
f + / 6, ‒ Não limitado
r + /4, ‒ 1/16
Para TC-U8a-S
R = 0 + /4, ‒
 = +10 , ‒ +10 , ‒5
f + , ‒ /8 1/16
r + /4, ‒ 1/16
Processo
de
soldagem
Denominação da
junta
Espessura do Metal Base
(U = ilimitada)
Preparação em Chanfro
Posições de
soldagem
permitidas
Gás de proteção
para FCAW
Notas
T1 T2
Abertura de
raiz
Ângulo de
abertura do
chanfro
Face de
raiz
Raio do
bisel
SMAW TC-U8a U U
R = 0 a 1/8  = 45 f = 1/8 r = 3/8 Todas ― d, e, g, j, k
R = 0 a 1/8  = 30 f = 1/8 r = 3/8 Todas ― d, e, g, j, k
GMAW
FCAW
TC-U8a-GF U U R = 0 a 1/8  = 30 f = 1/8 r = 3/8 Todas Não Requerido a, d, g, j, k
SAW TC-U8a-S U U R = 0  = 45
f = 1/4
máx
r = 3/8 P ― d, g, j, k
Figura 3.4 (continuação) Detalhes Pré-Qualificados de Juntas Soldadas em
Chanfro CJP (ver 3.13) (Dimensões em polegadas (in)
AWS D1.1/D1.1M:2010 3- PRE QUALIFICAÇÃO DE WPSS
105
Ver notas na página 140
Solda de chanfro em J duplo (9)
Junta de topo (B)
Tolerâncias
Como detalhado
(ver 3 13 1)
Como ajustado
(ver 3 13 1)
R + / 6, ‒ + / 6, ‒ /8
 = +10 , ‒ +10 , ‒5
f =  / 6, ‒ Não limitado
r + /8, ‒ 1/16
Processo de
soldagem
Denominação da
junta
Espessura do Metal Base
(U = ilimitada) Preparação em Chanfro
Posições de
soldagem
permitidas
Gás de
proteção para
FCAW Notas
T1 T2
Abertura de
raiz
Ângulo de
abertura do
chanfro
Face de
raiz
Raio do
bisel
SMAW B-U9 U ― R = 0 a 1/8  = 45 f = 1/8 r = 3/8 Todas ―
c, d, e,
h, j
GMAW
FCAW
B-U9-GF U ― R = 0 a 1/8  = 30 f = 1/8 r = 3/8 Todas
Não
Requerido
a, c, d,
h, j
Solda de chanfro em J duplo (9)
Junta em T (T)
Junta de ângulo (C)
Tolerâncias
Como detalhado
(ver 3 13 1)
Como ajustado
(ver 3 13 1)
R + / 6, ‒ + / 6, ‒ /8
 = +10 , ‒ +10 , ‒5
f =  / 6, ‒ Não limitado
r + /8, ‒ 1/16
Processo de
soldagem
Denominação da
junta
Espessura do Metal
Base
(U = ilimitada) Preparação em Chanfro
Posições de
soldagem
permitidas
Gás de
proteção para
FCAW Notas
T1 T2 Abertura de raiz
Ângulo de
abertura do
chanfro
Face de
raiz
Raio do
bisel
SMAW TC-U9a U U
R = 0 a 1/8  = 45 f = 1/8 r = 3/8 Todas ―
d, e, g,
h, j, k
R = 0 a 1/8  = 30 f = 1/8 r = 3/8 P, SC ―
d, e, g,
h, k
GMAW
FCAW
TC-U9a-GF U U R = 0 a 1/8  = 30 f = 1/8 r = 3/8 Todas Não Requerido
a, d, g,
h, j, k
Figura 3.4 (continuação) - Detalhes Pré-Qualificados de Juntas Soldadas em
Chanfro CJP (ver 3.13) (Dimensões em polegadas (in)
AWS D1.1/D1.1M:2010 3- PRE QUALIFICAÇÃO DE WPSS
106
Ver notas na página 140
Solda de chanfro quadrado (1)
Junta de topo (B)
Junta de ângulo (C)
TODAS AS DIMENSÕES EM mm
Processo de
soldagem
Denominação da
junta
Espessura do Metal Base
(U = ilimitada) Preparação em Chanfro
Posições de
soldagem
permitidas
Gás de
proteção para
FCAW Notas
T1 T2 Abertura de raiz
Tolerâncias
Como detalhado
(ver 3 13 1)
Como ajustado
(ver 3 13 1)
SMAW
B-L1a 6 máx ― R = T1 +2, ‒ +6, ‒2 Todas ― e, j
C-L1a 6 máx U R = T1 +2, ‒ +6, ‒2 Todas ― e, j
GMAW
FCAW
B-L1a-GF 10 máx ― R = T1 +2, ‒ +6, ‒2 Todas Não Requerido a, j
Solda de chanfro quadrado (1)
Junta de topo (B)
TODAS AS DIMENSÕES EM mm
Processo de
soldagem
Denominação da
junta
Espessura do Metal Base
(U = ilimitada) Preparação em Chanfro
Posições de
soldagem
permitidas
Gás de
proteção para
FCAW Notas
T1 T2 Abertura de raiz
Tolerâncias
Como detalhado
(ver 3 13 1)
Como ajustado
(ver 3 13 1)
SMAW B-L1b 6 máx ―
R = T1
2
+2, ‒ +2, ‒3 Todas ― d, e, j
GMAW
FCAW
B-L1b-GF 10 máx ― R = 0 a 3 +2, ‒ +2, ‒3 Todas Não Requerido a, d, j
SAW
B-L1-S 10 máx ― R = 0 0 +2, ‒ P ― j
B-L1a-S 16 máx ― R = 0 0 +2, ‒ P ― d, j
Figura 3.4 (continuação) Detalhes Pré-Qualificados de Juntas Soldadas em
Chanfro CJP (ver 3.13) (Dimensões em Milímetros)
AWS D1.1/D1.1M:2010 3- PRE QUALIFICAÇÃO DE WPSS
107
Ver notas na página 140
Solda de chanfro quadrado (1)
Junta em T (T)
Junta de ângulo (C)
TODAS AS DIMENSÕES EM mm
Processo de
soldagem
Denominação da
junta
Espessura do Metal Base
(U = ilimitada) Preparação em Chanfro
Posições de
soldagem
permitidas
Gás de
proteção para
FCAW Notas
T1 T2 Abertura de raiz
Tolerâncias
Como detalhado
(ver 3 13 1)
Como ajustado
(ver 3 13 1)
SMAW TC-L1b 6 máx U
R = T1
2
+2, ‒ +2, ‒3 Todas ― d, e, g
GMAW
FCAW
TC-L1-GF 10 máx U R = 0 a 3 +2, ‒ +2, ‒3 Todas Não Requerido a, d, g
SAW TC-L1-S 10 máx U R = 0 0 +2, ‒ P ― d, g
Solda de chanfro em V simples (2)
Junta de topo (B)
TODAS AS DIMENSÕES EM mm
Tolerâncias
Como detalhado
(ver 3 13 1)
Como ajustado
(ver 3 13 1)
R +2, ‒ +6, ‒2
 = +10 , ‒ +10 , ‒5
Processo de
soldagem
Denominação da
junta
Espessura do Metal Base
(U = ilimitada) Preparação em Chanfro Posições de
soldagem
permitidas
Gás de
proteção para
FCAW Notas
T1 T2 Abertura de raiz Ângulo do chanfro
SMAW B-U2a U ―
R = 6  = 45 Todas ― e, j
R = 10  = 30 P, V, SC ― e, j
R = 12  = 20 P, V, SC ― e, j
GMAW
FCAW
B-U2a-GF U ―
R = 5  = 30 P, V, SC Requerido a, j
R = 10  = 30 P, V, SC Não Requerido a, j
R = 6  = 45 P, V, SC Não Requerido a, j
SAW
B-L2a-S 50 máx ― R = 6  = 30 P ― j
B-U2-S I ― R = 16  = 20 P ― j
Figura 3.4 (continuação) - Detalhes Pré-Qualificados de Juntas Soldadas em
Chanfro CJP (ver 3.13) (Dimensões em Milímetros)
AWS D1.1/D1.1M:2010 3- PRE QUALIFICAÇÃO DE WPSS
108
Ver notas na página 140
Solda de chanfro em V simples (2)
Junta de ângulo (C)
TODAS AS DIMENSÕES EM mm
Tolerâncias
Como detalhado
(ver 3 13 1)
Como ajustado
(ver 3 13 1)
R +2, ‒ +6, ‒2
 = +10 , ‒ +10 , ‒5
Processo de
soldagem
Denominação da
junta
Espessura do Metal Base
(U = ilimitada) Preparação em Chanfro
Posições de
soldagem
permitidas
Gás de
proteção para
FCAW Notas
T1 T2 Abertura de raiz Ângulo do chanfro
SMAW C-U2a U U
R = 6  = 45 Todas ― e, j
R = 10  = 30 P, V, SC ― e, j
R = 12  = 20 P, V, SC ― e, j
GMAW
FCAW
C-U2a-GF U U
R = 5  = 30 P, V, SC Requerido a
R = 10  = 30 P, V, SC Não Requerido a, j
R = 6  = 45 P, V, SC Não Requerido a, j
SAW
C-L2a-S 50 máx U R = 6  = 30 P ― j
C-U2-S U U R = 16  = 20 P ― j
Solda de chanfro em V simples (2)
Junta de topo (B)
TODAS AS DIMENSÕES EM mm
Processo de
soldagem
Denominação da
junta
Espessura do Metal Base
(U = ilimitada) Preparação em Chanfro
Posições de
soldagem
permitidas
Gás de
proteção para
FCAW Notas
T1 T2
Abertura de raiz
Face de raiz
Ângulo de abertura do
chanfro
Tolerâncias
Como
detalhado
(ver 3 13 1)
Como ajustado
(ver 3 13 1)
SMAW B-U2 U 
R = 0 a 3
f = 0 a 3
 = 60
+ 2, ‒
+2, ‒
+10 , ‒
+2, ‒3
Não limitado
+10 , ‒5
Todas ― d, e, j
GMAW
FCAW
B-U2-GF U 
R = 0 a 3
f = 0 a 3
 = 60
+ 2, ‒
+2, ‒
+10 , ‒
+2, ‒3
Não limitado
+10 , ‒5
Todas Não Requerido a, d, j
SAW B-L2c-S
Acima de 12
a 25

R = 0
f = 6 máx
 = 60
R = 0
f + , ‒f
 = +10 , ‒
+2, ‒
2
+10 , ‒5
P ― d, j
Acima de 25
a 38

R = 0
f = 12 máx
 = 60
Acima de 38
a 50

R = 0
f = 16 máx
 = 60
Figura 3.4 (continuação)— Detalhes Pré-Qualificados de Juntas Soldadas em
Chanfro CJP (ver 3.13) (Dimensões em Milímetros)
AWS D1.1/D1.1M:2010 3- PRE QUALIFICAÇÃO DE WPSS
109
Ver notas na página 140
Solda de chanfro em V simples (2)
Junta de ângulo (C)
TODAS AS DIMENSÕES EM mm
Processo de
soldagem
Denominação da
junta
Espessura do Metal Base
(U = ilimitada) Preparação em Chanfro
Posições de
soldagem
permitidas
Gás de
proteção para
FCAW Notas
T1 T2
Abertura de raiz
Face de raiz
Ângulo de abertura do
chanfro
Tolerâncias
Como
detalhado
(ver 3 13 1)
Como ajustado
(ver 3 13 1)
SMAW C-U2 U U
R = 0 a 3
f = 0 a 3
 = 60
+ 2, ‒
+2, ‒
+10 , ‒
+2, ‒3
Não limitado
+10 , ‒5
Todas ― d, e, g, j
GMAW
FCAW
C-U2-GF U U
R = 0 a 3
f = 0 a 3
 = 60
+ 2, ‒
+2, ‒
+10 , ‒
+2, ‒3
Não limitado
+10 , ‒5
Todas Não Requerido a, d, g, j
SAW C-U2b-S U U
R = 0 a 3
f = 6 máx
 = 60
0
+ , ‒6
+10 , ‒
+2, ‒
2
+10 , ‒5
P ― d, g, j
Solda de chanfro em X (3)
Junta de topo (B)
TODAS AS DIMENSÕES EM mm
Tolerâncias
Como detalhado
(ver 3 13 1)
Como ajustado
(ver 3 13 1)
R = 0 +6, ‒
f = 0 +2, ‒
 = +10 , ‒ +10 , ‒5
Espaçador
SAW 0 +2, ‒
SMAW 0 +3, ‒
Processo de
soldagem
Denominação da
junta
Espessura do Metal Base
(U = ilimitada) Preparação em Chanfro
Posições de
soldagem
permitidas
Gás de
proteção para
FCAW Notas
T1 T2
Abertura
de raiz Face de raiz
Ângulo de abertura do
chanfro
SMAW B-U3a
U
Espaçador = 1/8  R
―
R = 6 f = 0 a 3  = 45 Todas ―
d, e, h, j
R = 10 f = 0 a 3  = 30 P, V, SC ―
R = 12 f = 0 a 3  = 20 P, V, SC ―
SAW B-U3a-S
U
Espaçador = 1/4  R
― R = 16 f = 0 a 6  = 20 P ― d, h, j
Figura 3.4 (continuação)— Detalhes Pré-Qualificados de Juntas Soldadas em
Chanfro CJP (ver 3.13) (Dimensões em Milímetros)
AWS D1.1/D1.1M:2010 3- PRE QUALIFICAÇÃO DE WPSS
110
Ver notas na página 140
Solda de chanfro em X (3)
Junta de topo (B)
TODAS AS DIMENSÕES EM mm
Para B-U3c-S apenas
T1 S1
Acima de a
35
50 60
60 80 45
80 90 55
90 100 60
100 120 70
120 140 80
140 160 95
Para T1 > 160 ou T1 ≤ 5
S1 = 2/3 (T1 ‒ 6)
Processo de
soldagem
Denominação da
junta
Espessura do Metal
Base
(U = ilimitada) Preparação em Chanfro
Posições de
soldagem
permitidas
Gás de
proteção para
FCAW Notas
T1 T2
Abertura de raiz
Face de raiz
Ângulo de abertura do
chanfro
Tolerâncias
Como detalhado
(ver 3 13 1)
Como ajustado
(ver 3 13 1)
SMAW B-U3b
U ―
R = 0 a 3
f = 0 a 3
 =  = 60
+ 2, ‒
+ 2, ‒
+10 , ‒
+2, ‒3
Não limitado
+10 , ‒5
Todas ― d, e, h, j
GMAW
FCAW B-U3-GF Todas Não Requerido a, d, h, j
SAW B-U3c-S U ―
R = 0
f = 6 mín
 =  = 60
+ 2, ‒
+ 6, ‒
+10 , ‒
+ 2, ‒
+ 6, ‒
+10 , ‒
P ― d, h, j
Para encontrar S1 ver tabela acima S2 = T1 ‒ (S1 + f)
Solda de chanfro em bisel simples (4)
Junta de topo (B)
TODAS AS DIMENSÕES EM mm
Tolerâncias
Como detalhado
(ver 3 13 1)
Como ajustado
(ver 3 13 1)
R +2, ‒ +6, ‒2
 = +10 , ‒ +10 , ‒5
Processo de
soldagem
Denominação da
junta
Espessura do Metal Base
(U = ilimitada) Preparação em Chanfro
Posições de
soldagem
permitidas
Gás de
proteção para
FCAW Notas
T1 T2 Abertura de raiz
Ângulo de abertura do
chanfro
SMAW B-U4a U ―
R = 6  = 45 Todas ― c, e, j
R = 10  = 30 Todas ― c, e, j
GMAW
FCAW B-U4a-GF U ―
R = 5  = 30 Todas Requerido a, c, j
R = 6  = 45 Todas Não Requerido a, c, j
R = 10  = 30 P, H Não Requerido a, c, j
SAW B-U4a-S U ―
R = 10  = 30
P ― c, j
R = 6  = 45
Figura 3.4 (continuação)— Detalhes Pré-Qualificados de Juntas Soldadas em
Chanfro CJP (ver 3.13) (Dimensões em Milímetros)
AWS D1.1/D1.1M:2010 3- PRE QUALIFICAÇÃO DE WPSS
111
Ver notas na página 140
Solda de chanfro em bisel simples (4)
Junta em T (T)
Junta de ângulo (C)
TODAS AS DIMENSÕES EM mm
Tolerâncias
Como detalhado
(ver 3 13 1)
Como ajustado
(ver 3 13 1)
R +2, ‒ +6, ‒2
 = +10 , ‒ +10 , ‒5
Processo de
soldagem
Denominação da
junta
Espessura do Metal Base
(U = ilimitada) Preparação em Chanfro
Posições de
soldagem
permitidas
Gás de
proteção para
FCAW Notas
T1 T2 Abertura de raiz
Ângulo de abertura do
chanfro
SMAW TC-U4a U U
R = 6  = 45 Todas ― e, g, j, k
R = 10  = 30 P, V, SC ― e, g, j, k
GMAW
FCAW
TC-U4a-GF U U
R = 5  = 30 Todas Requerido a, g, j, k
R = 10  = 30 P Não Requerido a, g, j, k
R = 6  = 45 Todas Não Requerido a, g, j, k
SAW TC-U4a-S U U
R = 10  = 30
P ― g, j, k
R = 6  = 45
Solda de chanfro em bisel simples (4)
Junta de topo (B)
TODAS AS DIMENSÕES EM mm
Processo de
soldagem
Denominação da
junta
Espessura do Metal Base
(U = ilimitada)
Preparação em Chanfro
Posições de
soldagem
permitidas
Gás de
proteção para
FCAW
Notas
T1 T2 Abertura de raiz
Tolerâncias
Como
detalhado
(ver 3 13 1)
Como ajustado
(ver 3 13 1)
SMAW B-U4b U ― R = 0 a 3
f = 0 a 3
 = 45
+ 2, ‒
+ 2, ‒
+10 , ‒
+2, ‒3
Não limitado
+10 , ‒5
Todas ― c, d, e, j
GMAW
FCAW
B-U4b-GF U ― Todas Não Requerido a, c, d, j
SAW B-U4b-S U ―
R = 0
f = 6 máx
 = 60
0
+ , ‒3
+10 , ‒
+6, ‒
2
+10 , ‒5
P ― c, d, j
Figura 3.4 (continuação)— Detalhes Pré-Qualificados de Juntas Soldadas em
Chanfro CJP (ver 3.13) (Dimensões em Milímetros)
AWS D1.1/D1.1M:2010 3- PRE QUALIFICAÇÃO DE WPSS
112
Ver notas na página 140
Solda de chanfro em bisel simples (4)
Junta em T (T)
Junta de ângulo (C)
TODAS AS DIMENSÕES EM mm
Processo de
soldagem
Denominação da
junta
Espessura do Metal Base
(U = ilimitada) Preparação em Chanfro
Posições de
soldagem
permitidas
Gás de
proteção para
FCAW Notas
T1 T2
Abertura de raiz
Face de raiz
Ângulo de abertura do
chanfro
Tolerâncias
Como
detalhado
(ver 3 13 1)
Como
ajustado
(ver 3 13 1)
SMAW TC-U4b U U R = 0 a 3
f = 0 a 3
 = 45
+ 2, ‒
+ 2, ‒
+10 , ‒
+2, ‒3
Não limitado
+10 , ‒5
Todas ―
d, e, g, j,
k
GMAW
FCAW
TC-U4b-GF U U Todas Não Requerido
a, d, g, j,
k
SAW TC-U4b-S U U
R = 0
f = 6 máx
 = 60
0
+ , ‒3
+10 , ‒
+ 6, ‒
2
+10 , ‒5
P ― d, g, j, k
Solda de chanfro em bisel duplo (5)
Junta de topo (B)
Junta em T (T)
Junta de ângulo (C)
TODAS AS DIMENSÕES EM mm
Tolerâncias
Como
detalhado
(ver 3 13 1)
Como ajustado
(ver 3 13 1)
R = 0 +6, ‒
f +2, ‒ 2
 = +10 , ‒ +10 , ‒5
Espaçador +2, ‒ +3, ‒
Processo de
soldagem
Denominação da
junta
Espessura do Metal Base
(U = ilimitada) Preparação em Chanfro
Posições de
soldagem
permitidas
Gás de
proteção para
FCAW Notas
T1 T2
Abertura de
raiz Face de raiz
Ângulo de abertura
do chanfro
SMAW
B-U5b
U
Espaçador = 1/8  R
― R = 6 f = 0 a 3  = 45 Todas
― c, d, e, h,
j
TC-U5a
U
Espaçador = 1/4  R
U
R = 6 f = 0 a 3  = 45 Todas ―
d, e, g, h,
j, k
R = 10 f = 0 a 3  = 30 P, SC ―
d, e, g, h,
j, k
Figura 3.4 (continuação)— Detalhes Pré-Qualificados de Juntas Soldadas em
Chanfro CJP (ver 3.13) (Dimensões em Milímetros)
AWS D1.1/D1.1M:2010 3- PRE QUALIFICAÇÃO DE WPSS
113
Ver notas na página 140
Solda de chanfro em bisel duplo (5)
Junta de topo (B)
TODAS AS DIMENSÕES EM mm
Processo de
soldagem
Denominação da
junta
Espessura do Metal Base
(U = ilimitada) Preparação em Chanfro
Posições de
soldagem
permitidas
Gás de
proteção para
FCAW Notas
T1 T2
Abertura de raiz
Face de raiz
Ângulo de abertura do
chanfro
Tolerâncias
Como
detalhado
(ver 3 13 1)
Como ajustado
(ver 3 13 1)
SMAW B-U5a U ―
R = 0 a 3
f = 0 a 3
 = 45
 = 0 a 15
+ 2, ‒
+ 2, ‒
 +  =
+10 , ‒
+2, ‒3
Não limitado
 +  =
+10 , ‒5
Todas ―
c, d, e,
h, j
GMAW
FCAW
B-U5-GF U ―
R = 0 a 3
f = 0 a 3
 = 45
 = 0 a 15
+ 2, ‒
+ 2, ‒
 +  =
+10 , ‒
+2, ‒3
Não limitado
 +  =
+10 , ‒5
Todas Não Requerido
a, c, d,
h, j
Solda de chanfro em bisel duplo (5)
Junta em T (T)
Junta de ângulo (C)
TODAS AS DIMENSÕES EM mm
Processo de
soldagem
Denominação da
junta
Espessura do Metal Base
(U = ilimitada)
Preparação em Chanfro
Posições de
soldagem
permitidas
Gás de
proteção para
FCAW
Notas
T1 T2
Abertura de raiz
Face de raiz
Ângulo de abertura do
chanfro
Tolerâncias
Como
detalhado
(ver 3 13 1)
Como ajustado
(ver 3 13 1)
SMAW TC-U5b U U R = 0 a 3
f = 0 a 3
 = 45
+ 2, ‒
+ 2, ‒
+10 , ‒
+2, ‒3
Não limitado
+10 , ‒5
Todas ―
d, e, g,
h, j, k
GMAW
FCAW
TC-U5-GF U U Todas Não Requerido
a, d, g,
h, j, k
SAW TC-U5-S U U
R = 0
f = 6 máx
 = 60
0
+ , ‒5
+10 , ‒
+ 2, ‒
2
+10 , ‒5
P ―
d, g, h,
j, k
Figura 3.4 (continuação) - Detalhes Pré-Qualificados de Juntas Soldadas em
Chanfro CJP (ver 3.13) (Dimensões em Milímetros)
AWS D1.1/D1.1M:2010 3- PRE QUALIFICAÇÃO DE WPSS
114
Ver notas na página 140
Solda de chanfro em U (6)
Junta de topo (B)
Junta de ângulo (C)
TODAS AS DIMENSÕES EM mm
Tolerâncias
Como
detalhado
(ver 3 13 1)
Como ajustado
(ver 3 13 1)
R +2, ‒ +2, ‒3
 = +10 , ‒ +10 , ‒5
f = 2 Não limitado
r +3, ‒ +3, ‒
Processo de
soldagem
Denominação da
junta
Espessura do Metal Base
(U = ilimitada) Preparação em Chanfro
Posiçõe
s de
soldage
m
permiti
das
Gás de
proteção para
FCAW Notas
T1 T2
Abertura de
raiz
Ângulo de
abertura do
chanfro
Face de
raiz Raio do bisel
SMAW
B-U6 U ―
R = 0 a 3  = 45 f = 3 r = 6 Todas ― d, e, j
R = 0 a 3  = 20 f = 3 r = 6 P, SC ― d, e, j
C-U6 U U
R = 0 a 3  = 45 f = 3 r = 6 Todas ― d, e, g, j
R = 0 a 3  = 20 f = 3 r = 6 P, SC ― d, e, g, j
GMAW
FCAW
B-U6-GF U ― R = 0 a 3  = 20 f = 3 r = 6 Todas Não Requerido a, d, j
C-U6-GF U U R = 0 a 3  = 20 f = 3 r = 6 Todas Não Requerido a, d, g, j
Solda de chanfro em duplo U (7)
Junta de topo (B)
TODAS AS DIMENSÔES EM mm
Tolerâncias
Como detalhado
(ver 3 13 1)
Como ajustado
(ver 3 13 1)
Para B-U7 e B-U7-GF
R +2, ‒ +2, ‒3
 = +10 , ‒ +10 , ‒5
f +2, ‒ Não limitado
r +6, ‒ 2
Para B-U7-S
R = +0 +2, ‒
 = +10 , ‒ +10 , ‒5
f + , ‒6 2
r +6, ‒ 2
Processo de
soldagem
Denominação da
junta
Espessura do Metal Base
(U = ilimitada) Preparação em Chanfro
Posições de
soldagem
permitidas
Gás de
proteção para
FCAW Notas
T1 T2
Abertura de
raiz
Ângulo de
abertura do
chanfro
Face de
raiz
Raio do
bisel
SMAW B-U7 U ―
R = 0 a 3  = 45 f = 3 r = 6 Todas ― d, e, h, j
R = 0 a 3  = 20 f = 3 r = 6 P, SC ― d, e, h, j
GMAW
FCAW
B-U7-GF U ― R = 0 a 3  = 20 f = 3 r = 6 Todas Não Requerido a, d, h, j
SAW B-U7-S U ― R = 0  = 20
f = 1/4
máx
r = 6 P ― d, h, j
Figura 3.4 (continuação) - Detalhes Pré-Qualificados de Juntas Soldadas em
Chanfro CJP (ver 3.13) (Dimensões em Milímetros)
AWS D1.1/D1.1M:2010 3- PRE QUALIFICAÇÃO DE WPSS
115
Ver notas na página 140
Solda de chanfro em J (8)
Junta de topo (B)
TODAS AS DIMENSÕES EM mm
Tolerâncias
Como detalhado
(ver 3 13 1)
Como ajustado
(ver 3 13 1)
B-U8 e B-U8-GF
R +2, ‒ +2, ‒3
 = +10 , ‒ +10 , ‒5
f +3, ‒ Não limitado
r +6, ‒ 2
Para B-U8-S
R = +0 +3, ‒
 = +10 , ‒ +10 , ‒5
f + , ‒3 2
r +6, ‒ 2
Processo de
soldagem
Denominação da
junta
Espessura do Metal Base
(U = ilimitada) Preparação em Chanfro
Posições de
soldagem
permitidas
Gás de
proteção para
FCAW Notas
T1 T2
Abertura de
raiz
Ângulo de
abertura do
chanfro
Face de
raiz
Raio do
bisel
SMAW B-U8 U ― R = 0 a 3  = 45 f = 3 r = 10 Todas ― c, d, e, j
GMAW
FCAW
B-U8-GF U ― R = 0 a 3  = 30 f = 3 r = 10 Todas
Não
Requerido
a, c, d, j
SAW B-U8-S U ― R = 0  = 45 f = 6 máx r = 10 P ― c, d, j
Solda de chanfro em J (8)
Junta em T (T)
Junta de ângulo (C)
TODAS AS DIMENSÕES EM mm
Tolerâncias
Como detalhado
(ver 3 13 1)
Como ajustado
(ver 3 13 1)
TC-U8a e TC-U8a-GF
R +2, ‒ +2, ‒3
 = +10 , ‒ +10 , ‒5
f +2, ‒ Não limitado
r +6, ‒ 2
Para TC-U8a-S
R = +0 +6, ‒
 = +10 , ‒ +10 , ‒5
f + , ‒3 2
r = +6, ‒ 2
Processo de
soldagem
Denominação da
junta
Espessura do Metal Base
(U = ilimitada) Preparação em Chanfro
Posições de
soldagem
permitidas
Gás de
proteção para
FCAW Notas
T1 T2
Abertura de
raiz
Ângulo de
abertura do
chanfro
Face de
raiz
Raio do
bisel
SMAW TC-U8a U U
R = 0 a 3  = 45 f = 3 r = 10 Todas ―
d, e, g, j,
k
R = 0 a 3  = 45 f = 3 r = 10 P, SC ―
d, e, g, j,
k
GMAW
FCAW
TC-U8a-GF U U R = 0 a 3  = 45 f = 3 r = 10 Todas Não Requerido
a, d, g, j,
k
SAW TC-U8a-S U U R = 0  = 45 f = 6 máx r = 10 P ― d, g, j, k
Figura 3.4 (continuação)— Detalhes Pré-Qualificados de Juntas Soldadas em
Chanfro CJP (ver 3.13) (Dimensões em Milímetros)
AWS D1.1/D1.1M:2010 3- PRE QUALIFICAÇÃO DE WPSS
116
Ver notas na página 140
Solda de chanfro em J duplo (9)
Junta de topo (B)
TODAS AS DIMENSÕES EM mm
Tolerâncias
Como detalhado
(ver 3 13 1)
Como ajustado
(ver 3 13 1)
R +2, ‒ +2, ‒3
 = +10 , ‒ +10 , ‒5
f +2, ‒ Não limitado
r +3, ‒ 2
Processo de
soldagem
Denominação da
junta
Espessura do Metal Base
(U = ilimitada) Preparação em Chanfro
Posições de
soldagem
permitidas
Gás de
proteção para
FCAW Notas
T1 T2
Abertura de
raiz
Ângulo de
abertura do
chanfro
Face de
raiz
Raio do
bisel
SMAW B-U9 U ― R = 0 a 3  = 45 f = 3 r = 10 Todas ―
c, d, e, h,
j
GMAW
FCAW
B-U9-GF U ― R = 0 a 3  = 30 f = 3 r = 10 Todas
Não
Requerido
a, c, d, h,
j
Solda de chanfro em J duplo (9)
Junta em T (T)
Junta de ângulo (C)
TODAS AS DIMENSÕES EM mm
Tolerâncias
Como detalhado
(ver 3 13 1)
Como ajustado
(ver 3 13 1)
R +2, ‒ +2, ‒3
 = +10 , ‒ +10 , ‒5
f +2, ‒ Não limitado
r +3, ‒ 2
Processo de
soldagem
Denominação da
junta
Espessura do Metal Base
(U = ilimitada) Preparação em Chanfro
Posições de
soldagem
permitidas
Gás de
proteção para
FCAW Notas
T1 T2
Abertura de
raiz
Ângulo de
abertura do
chanfro
Face de
raiz
Raio do
bisel
SMAW TC-U9a U U
R = 0 a 3  = 45 f = 3 r = 10 Todas ―
d, e, g, h,
j, k
R = 0 a 3  = 30 f = 3 r = 10 P, SC ―
d, e, g, h,
j, k
GMAW
FCAW
TC-U9a-GF U U R = 0 a 3  = 30 f = 3 r = 10 Todas Não Requerido
a, d, g, h,
j, k
Figura 3.4 (continuação) - Detalhes Pré-Qualificados de Juntas Soldadas em
Chanfro CJP (ver 3.13) (Dimensões em Milímetros)
AWS D1.1/D1.1M:2010 3- PRE QUALIFICAÇÃO DE WPSS
117
Figura 3.5 - Detalhes Pré-qualificados de Junta para Conexões Tubulares em
T-, Y-, K-, e PJP (ver 3.12.4)
AWS D1.1/D1.1M:2010 3- PRE QUALIFICAÇÃO DE WPSS
118
Figura 3.5 (Continuação) - Detalhes Pré-qualificados de Junta para Conexões
Tubulares em T-, Y-, K-, e PJP (ver 3.12.4)
AWS D1.1/D1.1M:2010 3- PRE QUALIFICAÇÃO DE WPSS
119
Notas:
1. t = espessura da seção mais fina.
2. Bisel para aresta chanfrada exceto em zonas de transição e calcanhar.
3. Abertura de raiz: 0 in a 3/16 in [5 mm].
4. Não pré-qualificado para abaixo de 30°.
5. Tamanho de solda (garganta efetiva) tw ≥ t; Dimensão de Perda Z mostrada na Tabela 2.9.
6. Cálculos por 2.25.1.3 devem ser feitos para comprimento de perna menor que 1.5t, como mostrado.
7. Para Seção de Caixa, a preparação de junta para transições de ângulo deve fornecer uma transição suave de um
detalhe para outro. A soldagem deve ser conduzida continuamente ao redor dos cantos, com os cantos completamente
construídos e todos os inícios e interrupções de solda em faces planas.
8. Ver Anexo K para definição de ângulo diedro local,
9. W.P. = posto de trabalho
Figura 3.5 (Continuação) - Detalhes Pré-qualificados de Junta para Conexões
Tubulares em T-, Y-, K-, e PJP (ver 3.12.4)
AWS D1.1/D1.1M:2010 3- PRE QUALIFICAÇÃO DE WPSS
120
Observações:
1. Os detalhes A, B, C, D como mostrado na Figura 3.8 e todas as observações da Tabela 3.6 aplicam-se.
2. A preparação de junta para soldas de ângulo deve fornecer uma transição suave de um detalhe para outro. A soldagem
deve ser conduzida continuamente ao redor dos cantos, com os cantos completamente construídos e todos os inícios e
interrupções de arco no âmbito de faces planas.
3. Referências à Figura 3.8 incluem Figuras 3.9 e 3.10, conforme apropriado para a espessura (ver 2.21.6.7).
Figura 3.6 - Detalhes Pré-qualificados de Junta para Conexões Tubulares em
T-, Y-, K-, e CJP (ver 3.15.5)
AWS D1.1/D1.1M:2010 3- PRE QUALIFICAÇÃO DE WPSS
121
Figura 3.7 – Definições e Seleções Detalhadas para Conexões Tubulares Pré-
qualificadas em K-,T-,Y-, e CJP (ver 3.13.5 e Tabela 3.5)
AWS D1.1/D1.1M:2010 3- PRE QUALIFICAÇÃO DE WPSS
122
Observações:
1. Ver Tabela 3.6 para dimensões tb L, R, W,  ϕ
2. Perfil de solda plano de padrão mínimo deve ser como mostrado por linha sólida.
3. Um perfil côncavo, como mostrado por linhas tracejadas, também deve ser aplicável.
4. Convexidade, sobreposição, etc. devem ser sujeitos às limitações de 5.24.
5. A espessura dos membros de ramificação, tb, deve estar sujeita às limitações de 2.21.6.7.
Figura 3.8 – Detalhes Pré-qualificados de Junta para Soldas em Chanfro CJP
em Conexões Tubulares em T-, Y-, e K- - Perfis Planos Padrão para
Espessura Limitada (ver 3.13.5)
AWS D1.1/D1.1M:2010 3- PRE QUALIFICAÇÃO DE WPSS
123
Observações:
1. Os esboços ilustram perfis padrão alternativos com filete de extremidade.
2. Ver 2.21.6.7 para faixa aplicável de espessura tb.
3. O tamanho mínimo de solda de filete, F = tb/2, também deve estar sujeito aos limites da Tabela 5.8.
4. Ver Tabela 3.6 para dimensões tb L, R, W,  ϕ
5. Convexidade e sobreposição devem estar sujeitas às limitações de 5.24.
6. Perfis côncavos, como mostrado por linhas tracejadas também deve ser aceitável.
Figura 3.9 – Detalhes Pré-qualificados de Junta para Soldas em Chanfro CJP
em Conexões Tubulares em T-, Y-, e K- - Perfil com Filete de Extremidade
para Espessura Intermediária (ver 3.13.5)
AWS D1.1/D1.1M:2010 3- PRE QUALIFICAÇÃO DE WPSS
124
Observações:
1. Ilustrando perfis de solda melhorados para 2.21.6.6(1) soldagem em bruto e 2.21.6.6(2) completamente retificado.
2. Para seções pesadas ou aplicações com fadiga crítica como indicado em 2.21.6.7.
3. Ver Tabela 3.6 para dimensões tb L, R, W,  ϕ
Figura 3.10 – Detalhes Pré-qualificados de Junta para Soldas em Chanfro
CJP em Conexões Tubulares em T-, Y-, e K- - Perfil Côncavo Melhorado para
Seções Pesadas ou Fadiga (ver 3.13.5)
AWS D1.1/D1.1M:2010 3- PRE QUALIFICAÇÃO DE WPSS
125
a
Detalhe (D). Aplicar dimensão de perda Z da Tabela 2.2 para determinar garganta efetiva.
b
O detalhe (D) não deve ser pré-qualificado para abaixo de 30 . Para qualificações de soldador, ver Tabela 4.10.
Observações:
1. (En), (E'n) = Gargantas efetivas dependentes da magnitude da abertura de raiz (Rn) (ver 5.22.1). (n) representa de 1 a 5.
2. t = espessura da parte mais fina
3. Não pré-qualificado para GMAW-S ou GTAW.
Figura 3.11 – Detalhes Pré-qualificados de Juntas Oblíquas em T- (Não
Tubulares) (ver 3.9.3)
3- PRE QUALIFICAÇÃO DE WPSS AWS D1.1/D1.1M:2010
140
4. Qualificação
4.1 Escopo
Os requisitos para teste de qualificação de
especificações de procedimento de soldagem (WPSs) e
equipe de soldagem são descritos a seguir:
Parte A—Requisitos Gerais. Essa parte abrange
requisitos gerais de ambos os requisitos de desempenho
WPS e de equipe de soldagem.
Parte B—Especificação de Procedimento de
Soldagem (WPS). Essa parte abrange a qualificação
de uma WPS que não é classificada como pré-
qualificada em conformidade com a Cláusula 3.
Parte C—Qualificação de Desempenho. Essa parte
abrange testes de qualificação de desempenho
requeridos pelo código para determinar a habilidade do
soldador, do operador de soldagem ou do soldador
ponteador para produzir boas soldagens.
Parte D—Requisitos para Teste CVN. Essa parte
abrange requisitos gerais e procedimentos para teste
CVN quando especificado pelo documento de contrato.
Parte A
Requisitos Gerais
4.2 Geral
Os requisitos para teste de qualificação de WPSs e
equipe de soldagem (definida como soldadores,
operadores de soldagem e soldadores provisórios) são
descritos nessa seção.
4.2.1 Especificação de Procedimento de Soldagem
(WPS). Exceto para WPSs pré-qualificadas em
conformidade com a Cláusula 3, uma WPS para uso
em soldagem de produção deve ser qualificada em
conformidade com a Cláusula 4, Parte B. Evidência
documentada apropriada de qualificação WPS anterior
pode ser usada.
4.2.1.1 Responsabilidade de Qualificação. Cada
fabricante ou Empreiteiro deve conduzir os testes
requeridos por este código para qualificar a WPS. WPSs
propriamente documentadas qualificadas sob as
provisões deste código por uma empresa que mais tarde
tenha seu nome mudado devido a uma ação voluntária
ou consolidação com uma empresa controladora pode
utilizar o novo nome em seus documentos WPS
enquanto mantém os registros de qualificação de
suporte PQR com o antigo nome da empresa.
4.2.1.2 Qualificação WPS para Outros Padrões.
A aceitação de qualificação para outros padrões é
responsabilidade do Engenheiro, a ser exercida com
base na estrutura específica, ou condições de serviço, ou
ambos. A Série B2.1-X-XXX da AWS em
Especificações Padrão de Procedimento de Soldagem
pode, dessa forma, ser aceita para uso neste código.
4.2.1.3 Requisitos de Teste CVN. Quando
requerido por documentos de contrato, os testes CVN
devem ser incluídos na qualificação WPS. Os testes,
requisitos e procedimentos CVN devem estar em
conformidade com as provisões da Parte D dessa seção,
ou como especificado em documentos de contrato.
4.2.2 Qualificação de Desempenho da Equipe de
Soldagem. Soldadores, operadores de soldagem e
soldadores ponteadores a serem empregados sob este
código, e usando processos de soldagem a arco com
proteção SMAW, SAW, GMAW, GTAW, FCAW,
ESW, ou EGW, devem ter sido qualificados pelos testes
aplicáveis como descrito na Parte C desta seção (ver
Comentário).
4.2.2.1 Qualificação de Desempenho Anterior.
Testes de qualificação de desempenho anteriores de
soldadores, operadores de soldagem e soldadores
ponteadores que estejam propriamente documentados
são aceitáveis com a aprovação do Engenheiro. A
aceitação de qualificação de desempenho de outros
padrões é responsabilidade do Engenheiro, a ser
exercida com base na estrutura específica, ou condições
de serviço, ou ambos.
4.2.2.2 Responsabilidade de Qualificação. Cada
fabricante ou Empreiteiro deve ser responsável pela
qualificação de soldadores, operadores de soldagem e
soldadores ponteadores, seja a qualificação conduzida
pelo fabricante, Empreiteiro, ou uma agência de testes
independente.
4.2.3 Período de Efetividade
AWS D1.1/D1.1M:2012 ` 4. QUALIFICAÇÃO
127
4.2.3.1 Soldadores e Operadores de Soldagem. A
qualificação do soldador ou operador de soldagem
como especificado neste código deve ser considerada
como permanecendo em vigor indefinidamente a menos
que (1) o soldador não esteja envolvido em um dado
processo de soldagem para o qual o soldador ou
operador de soldagem é qualificado por um período
que excede seis meses ou a menos que (2) haja alguma
razão específica para questionar a habilidade de um
soldador ou operador de soldagem (ver 4.33.1).
4.2.3.2 Soldadores Ponteadores. Um soldador
ponteador que passe o teste descrito na Parte C ou
aqueles testes requeridos para qualificação de soldador
deve ser considerado elegível a realizar soldagem
provisória indefinidamente nas funções e com o
processo para o qual o soldador ponteador é
qualificado a menos que haja alguma razão específica
para questiona habilidade do soldador ponteador (ver
4.33.2).
4.3 Requisitos Comuns para
Qualificação de Desempenho
WPS e de Equipe de Soldagem
4.3.1 Qualificação para Edições Anteriores.
Qualificações que foram realizadas para e adequaram-se
aos requisitos de edições anteriores de D1.1 da AWS, ou
D1.0 d a AWS ou D2.0 da AWS enquanto essas
edições estavam em vigor são válidas e podem ser
usadas. O uso de edições anteriores deve ser proibido
para novas qualificações em lugar das edições atuais, a
menos que a edição anterior específica esteja
especificada nos documentos de contrato.
4.3.2 Envelhecimento. Quando permitido pela
especificação de metal de adição aplicável ao metal de
solda sendo testado, espécimes de teste completamente
soldados podem ser envelhecidos a 200°F a 220°F
[95°C a 105°C] por 48 ± 2 horas.
4.3.3 Registros. Registros dos resultados de teste
devem ser mantidos pelo fabricante ou Empreiteiro e
devem ser disponibilizados para aqueles
autorizados a examiná-los.
4.3.4 Posições de Soldas. Todas as soldas devem ser
classificadas como plana (F), horizontal (H), vertical
(V), e suspensa (OH), em conformidade com as
definições mostradas nas Figuras 4.1 e 4.2.
Posições de montagem de teste são mostradas em:
(1) Figura 4.3 (soldas em chanfro em placa)
(2) Figura 4.4 (soldas em chanfro em cano ou
tubulação)
(3) Figura 4.5 (soldas de filete em placa)
(4) Figura 4.6 (soldas de filete em cano ou
tubulação)
Parte B
Especificação de Procedimento de
Soldagem (WPS)
4.4 Posições de Soldagem de
Produção Qualificadas
As posições de soldagem de produção qualificadas por
uma WPS devem conformar-se aos requisitos da
Tabela 4.1.
4.5 Tipo de Testes de Qualificação
O tipo e número de testes de qualificação requeridos
para qualificar uma WPS para uma dada espessura,
diâmetro, ou ambos, deve conformar-se à Tabela 4.2
(CJP), Tabela 4.3 (PJP) ou Tabela 4.4 (filete).
Detalhes sobre o NDT individual e requisitos de teste
mecânico são achados nas seguintes subcláusulas:
(1) Inspeção Visual (ver 4.9.1)
(2) NDT (ver 4.9.2)
(3) Flexão de face, raiz e lateral (ver 4.9.3.1) (4)
Tensão de Seção Reduzida (ver 4.9.3.4) (5) Tensão de
Metal Depositado (ver 4.9.3.6) (6) Análise
macrográfica (ver 4.9.4)
4.6 Tipos de Solda para
Qualificação WPS
Para o propósito de qualificação WPS, os tipos de solda
devem ser classificados como segue:
(1) Soldas em chanfro CJP para Conexões Não-
Tubulares (ver 4.10)
(2) Soldas em chanfro PJP para Conexões Não-
Tubulares (ver 4.11)
(3) Soldas de Filete para Conexões Tubulares e
Não-Tubulares (ver 4.12)
(4) Soldas em chanfro CJP para Conexões
Tubulares (ver 4.13)
(5) Soldas em chanfro PJP para Conexões
Tubulares em T-, Y-, e K- e Juntas de Topo (ver
4.14)
(6) Soldas de Tampão para Conexões Tubulares e
Não-Tubulares (ver 4.15)
4.7 Preparação de WPS
O fabricante ou Empreiteiro deve preparar uma WPS
escrita que especifica todas as variáveis essenciais
aplicáveis referidas in 4.8. O valor específico para essas
variáveis WPS deve ser obtido do registro de qualificação
de procedimento (PQR), que deve servir como uma
confirmação por escrito de uma qualificação WPS bem
sucedida.
AWS D1.1/D1.1M:2012 ` 4. QUALIFICAÇÃO
128
4.8 Variáveis Essenciais
4.8.1 SMAW, SAW, GMAW, GTAW, e FCAW.
Modificações além das limitações de variáveis
essenciais de PQR para os processos SMAW, SAW,
GMAW, GTAW, e FCAW mostrados na Tabela 4.5 e na
Tabela 4.6 (quando teste CVN é especificado) deve
requerer requalificação da WPS (ver 4.2.1.3).
4.8.2 ESW e EGW. Ver Tabela 4.7 para as
modificações de variável essencial de PQR que
requerem requalificação WPS para os processos EGW e
ESW.
4.8.3 Qualificação de Metal Base. WPSs que
requerem qualificação que usa metais base listados na
Tabela 3.1 devem qualificar outros grupos de metal
base em conformidade com a Tabela 4.8. WPSs para
metais base não listados na Tabela 3.1 ou Tabela 4.9
devem ser qualificados em conformidade com a
Cláusula 4. O uso de metais base não listados deve ser
aprovado pelo Engenheiro. WPSs com aços listados na
Tabela 4.9 devem também qualificar aços da Tabela 3.1
ou Tabela 4.9 em conformidade com a Tabela 4.8. A
Tabela 4.9 contém recomendações para corresponder
metal de adição de resistência e temperaturas mínimas
de pré-aquecimento e interpasse para A 514, A 517, A
709 Graus 100 e 100 W da ASTM, A 710 aços Grau A
(Classe 1 e 3) da ASTM, e A 871 Graus 60 e 65 da
ASTM.
4.8.4 Temperatura de Pré-aquecimento e Interpasse.
A temperatura mínima de pré-aquecimento e interpasse
deveria ser estabelecida com base na composição do
aço, como mostrado na Tabela 3.1. De forma
alternativa, métodos reconhecidos de predição ou
diretrizes como os fornecidos no Anexo I, ou outros
métodos, podem ser usados. Temperaturas de pré-
aquecimento e interpasse mais baixas que o requerido
pela Tabela 3.2 ou calculado pelo Anexo I podem ser
usadas contanto que sejam aprovadas pelo Engenheiro
e qualificadas por teste WPS.
Os métodos do Anexo I são baseados em testes de
laboratório com trincas e podem prever temperaturas de
pré-aquecimento mais altas que a temperatura mínima
mostrada na Tabela 3.2. O Anexo I pode ser útil para
identificar situações em que o risco de trincas é maior
devido a composição, restrições, nível de hidrogênio ou
aporte de calor de soldagem mais baixo onde pré-
aquecimento mais alto pode ser garantido.
Alternativamente, o Anexo I pode ajudar a definir
condições sob as quais trinca de hidrogênio é
improvável e em que os requisitos mínimos da Tabela
3.2 podem ser relaxados com segurança.
4.9 Métodos de Teste e Critérios
de Aceitação para Qualificação
WPS
As montagens soldadas de teste em conformidade com
4.9.2 devem ter espécimes de teste preparados ao cortar
a placa, cano ou tubulação de teste como mostrado nas
Figuras 4.7 a 4.11, o que for aplicável. Os espécimes de
teste devem ser preparados para o teste em
conformidade com as Figuras 4.12, 4.13, 4.14, e 4.18,
conforme aplicável.
4.9.1 Inspeção Visual de Soldas. A qualificação visual
aceitável para qualificação de soldas em chanfro e de
filete (excluindo guias de solda) deve estar em
conformidade com os seguintes requisitos, conforme
aplicável:
4.9.1.1 Inspeção Visual de Soldas em Chanfro.
Soldas em chanfro devem atender aos seguintes
requisitos:
(1) Qualquer trinca deve ser considerada
inaceitável, a despeito do tamanho.
(2) Todas as crateras devem ser preenchidas até a
seção transversal completa da solda.
(3) Reforço de solda não deve exceder 1/8 in [3
mm]. O perfil de solda deve estar em conformidade
com a Figura 5.4 e deve ter fusão completa.
(4) A mordedura não deve exceder 1/32 in [1 mm].
(5) A raiz de solda para chanfros CJP deve ser
inspecionada, e não deve ter quaisquer trincas, fusão
incompleta, ou penetração de junta inadequada.
(6) Para chanfros CJP soldados a partir de um lado
sem reforço, a concavidade de raiz ou fundido através
deve conformar-se ao seguinte:
(a) A concavidade máxima de raiz deve ser 1/16
in [2 mm], dado que a espessura total da solda seja igual
a ou maior que a do metal base.
(b) O fundido através máximo deve ser 1/8 in [3
mm] exceto para conexões tubulares em conexões em
T-, Y-, e K-, em que o fundido através não é limitado.
4.9.1.2 Inspeção Visual de Soldas de Filete.
Soldas de filete devem atender aos seguintes requisitos:
(1) Qualquer trinca deve ser considerada
inaceitável, a despeito de seu tamanho.
(2) Todas as crateras devem ser preenchidas até
a seção transversal completa da solda.
(3) Os tamanhos de perna da solda de filete não
devem ser menores que os tamanhos de perna
requeridos.
(4) O perfil de solda deve atender aos requisitos
da Figura 5.4.
(5) A mordedura do metal base não deve exceder
1/32 in [1 mm].
AWS D1.1/D1.1M:2012 ` 4. QUALIFICAÇÃO
129
4.9.2 NDT. Antes de preparar espécimes de teste
mecânico, a placa, cano ou tubulação de teste de
qualificação deve ser testado de forma não destrutiva
para checar a estabilidade como segue:
4.9.2.1 RT ou UT. RT ou UT deve ser usado. O
comprimento completo da solda em placas de teste,
exceto os comprimentos de descarte em cada
extremidade, deve ser examinado em conformidade
com a Cláusula 6, Parte E ou F. Para tubulares, a
circunferência inteira da solda completa deve ser
examinada em conformidade com a Cláusula 6, Parte
C.
4.9.2.2 Critérios de Aceitação RT ou UT. Para
qualificação aceitável, a solda, como revelado por RT
ou UT, deve conformar-se aos requisitos da Cláusula 6,
Parte C.
4.9.3 Teste Mecânico. O teste mecânico deve ser
como segue:
4.9.3.1 Espécimes de Flexão de Raiz, Face e
Lateral (ver Figura 4.12 para flexões de raiz e de face,
Figura 4.13 para flexões laterais). Cada espécime deve
ser flexionado em um separador de teste de flexão que
atenda os requisitos mostrados nas Figuras 4.15 a 4.17
ou que esteja substancialmente em conformidade com
aquelas figuras, contanto que o raio máximo de flexão
não seja excedido. Quaisquer meios convenientes
podem ser usados para mover o membro êmbolo com
relação ao membro matriz.
O espécime deve ser posicionado no membro matriz do
separador com a solda a meio vão. Espécimes de flexão
de face devem ser posicionados com a face da solda
direcionada para a folga. Espécimes de flexão de raiz e
solda de filete estáveis devem ser posicionados com a
raiz da solda direcionada para a folga. Espécimes de
flexão lateral devem ser posicionados com o lado que
mostra maior descontinuidade, se houver, direcionado
para a folga.
O êmbolo deve forçar o espécime para dentro da matriz
até que o espécime fique em forma de U. A solda e
HAZs devem estar centralizados e inteiramente dentro
da porção flexionada do espécime após o teste. Ao usar
o separador integrado, o espécime deve estar
firmemente preso em uma extremidade para que não
haja deslizamento do espécime durante a operação de
flexão. A solda e HAZs devem estar completamente
dentro da porção flexionada do espécime após o teste.
Espécimes de teste devem ser removidos do separador
quando o rolo externo tiver sido movido 180° do ponto
de partida.
4.9.3.2 Espécimes de Flexão Longitudinal.
Quando combinações de material diferem
marcadamente em propriedades de flexão mecânica,
como entre dois materiais base ou entre o metal de
solda e o metal base, testes de flexão longitudinal (face
e raiz) podem ser usados em lugar dos testes
transversais de flexão de face e de raiz. As montagens
de teste soldadas em conformidade com 4.9.2 devem ter
espécimes de teste preparados ao cortar a placa de teste
como mostrado na Figura 4.10 ou 4.11, a que for mais
aplicável. Os espécimes de teste para o teste de flexão
longitudinal devem ser preparados para teste como
mostrado na Figura 4.12.
4.9.3.3 Critérios de Aceitação para Testes de
Flexão. A superfície convexa do espécime de teste de
flexão deve ser visualmente examinada em busca de
descontinuidades de superfície. Para aceitação, a
superfície não deve conter descontinuidades que
excedam as seguintes dimensões:
(1) 1/8 in [3 mm] medido em qualquer direção na
superfície
(2) 3/8 in [10 mm]—a soma das maiores
dimensões de todas as descontinuidades excedendo 1/32
in [1 mm], mas menor que ou igual a 1/8 in [3 mm]
(3) 1/4 in [6 mm]—a trinca de canto máxima,
exceto quando essa trinca de canto resulta de inclusão
visível de escória ou outro tipo de descontinuidade de
fusão, deve ter no máximo de 1/8 in [3 mm].
Espécimes com trincas de canto que excedam 1/4 in [6
mm] sem evidência de inclusão de escória ou outro tipo
de descontinuidade de fusão devem ser
desconsiderados, e um espécime de teste substituto da
ligação soldada original deve ser testado.
4.9.3.4 Espécimes de Tensão de Seção Reduzida
(ver Figura 4.14). Antes do teste, as menores largura e
espessura correspondentes da seção reduzida devem ser
medidas O espécime deve ser rompido sob carga de
tensão, e a carga máxima deve ser determinadas. A área
de seção transversal deve ser obtida pela multiplicação
da largura pela espessura. A resistência à tração deve ser
obtida ao dividir a carga máxima pela área de seção
transversal.
4.9.3.5 Critérios de Aceitação de Teste de Tensão
de Seção Reduzida. A resistência à tração não deve ser
menor que o mínimo de faixa de tensão especificada do
metal base usado.
4.9.3.6 Espécime de Tensão de Metal
Depositado (ver Figura 4.18). O espécime de teste deve
ser testado em conformidade com A 370, Mechanical
Testing of Steel Products, da ASTM.
4.9.4 Análise Macrográfica. Os espécimes de teste de
solda devem ser preparados com um acabamento
adequado para exame macrográfico. Uma solução
adequada deve ser usada para textura para dar uma
definição clara da solda.
4.9.4.1 Critérios de Aceitação para Análise
Macrográfica. Para qualificação aceitável, o espécime
de teste, quando inspecionado visualmente, deve estar
em conformidade com os seguintes requisitos:
(1) Soldas em chanfro PJP; o tamanho de solda
real deve ser igual a ou maior que o tamanho de solda
especificado, (E).
(2) Soldas de filete devem ter fusão até a raiz da
junta, mas não necessariamente além.
(3) O tamanho mínimo de perna deve atender o
tamanho de solda de filete especificado.
(4) As soldas em chanfro PJP e soldas de filete
devem ter o seguinte:
AWS D1.1/D1.1M:2012 ` 4. QUALIFICAÇÃO
130
(a) nada de trincas
(b) fusão completa entre camadas adjacentes de
metal de solda e entre metal de solda e metal base
(c) perfis de solda em conformidade co detalhe
e specificado, mas sem qualquer das variações proibidas
em 5.24
(d) nenhuma mordedura excedendo 1/32 in [1 mm]
4.9.5 Reteste. Se qualquer um dos espécimes testados
não atender aos requisitos de teste, dois retestes para
aquele tipo particular de espécime de teste devem ser
realizados com espécimes cortados do mesmo material
de qualificação WPS. Os resultados de ambos os
espécimes de teste devem atender aos requisitos de
teste. Para material com espessura acima de 1-1/2 in [38
mm], a falha de um espécime deve requerer o teste de
todos os espécimes de mesmo tipo a partir de dois locais
adicionais no material de teste.
4.10 Soldas em Chanfro CJP para
Conexões Não Tubulares
Ver Tabela 4.2(1) para os requisitos para qualificar
uma WPS de uma solda CJP tubulares. Ver Figuras 4.9
–4.11 para a placa de teste apropriada.
4.10.1.1 Juntas de Ângulo ou em T-. Espécimes
de teste para soldas em chanfro em juntas de ângulo e
em T- devem ser juntas de topo que têm a mesma
configuração de chanfro da junta de ângulo ou em T- a
ser usada na construção, exceto que a profundidade de
chanfro não precisa exceder 1 in [25 mm].
4.11 Soldas em Chanfro PJP para
Conexões Não Tubulares
4.11.1 Tipo e Número de Espécimes a serem
Testados. O tipo e número de espécimes que devem ser
testados para qualificar uma WPS são mostrados na
Tabela 4.3. Uma amostra de solda deve ser feita usando
o tipo de projeto de chanfro e WPS a serem usados na
construção, exceto que a profundidade do chanfro não
precisa exceder 1 in [25 mm]. Para a análise
macrográfica requerida abaixo, qualquer aço dos Grupos
I, II, e III da Tabela 3.1 pode ser usado para qualificar o
tamanho de solda em quaisquer aços ou combinações de
aço nestes grupos. Se a solda em chanfro PJP será usada
em juntas de ângulo ou juntas em T-, a junta de topo
deve ter uma placa restritiva temporária no plano da face
quadrada para simular a configuração de junta em T-. As
amostras de solda devem ser testadas como segue:
4.11.2 Verificação de Tamanho de Solda por Análise
Macrográfica. Para WPSs que estão em todos os
aspectos em conformidade com a Cláusula 4, três
análises macrográficas de seção transversal devem ser
preparadas para demonstrar que o tamanho de solda
designado (obtido dos requisitos da WPS) foi atendido.
4.11.3 Verificação de WPS de Chanfro CJP por
Análise Macrográfica. Quando uma WPS foi
qualificada para uma solda em chanfro CJP e é aplicada
às condições de soldagem de uma solda em chanfro
PJP, três espécimes de análise macrográfica de seção
transversal devem ser requeridos para demonstrar que o
tamanho de solda especificado deve ser igualado ou
excedido.
4.11.4 Outras Verificações WPS por Análise
Macrográfica. Se uma WPS não é abordada por 4.11.2
ou 4.11.3, ou se as condições de soldagem não atendem
a um status pré-qualificado, ou se elas não foram
usadas e testadas para uma solda CJP em uma junta de
topo, então uma amostra de junta deve ser preparada e a
primeira operação deve ser fazer um espécime de
análise macrográfica para determinar o tamanho de
solda da junta. Então, o material em excesso deve ser
retirado do fundo da junta para a espessura do tamanho
de solda. Espécimes de teste de tensão e flexão devem
ser preparados e testes realizados, como requerido para
soldas em chanfro CJP (ver 4.10).
4.11.5 Soldas em Chanfro Curvado. Os tamanhos de
solda efetivos para soldas em chanfro curvado
qualificadas devem ser determinados pelo seguinte:
(1) Seções de teste devem ser usadas para verificar
que o tamanho de solda efetivo seja obtido
consistentemente.
(2) Para um dado conjunto de condições WPS, se o
Empreiteiro tem demonstrado produção consistente de
tamanhos efetivos de solda maiores que os mostrados
na Tabela 2.1, o Empreiteiro pode estabelecer tais
tamanhos efetivos maiores de solda por qualificação.
(3) Qualificação requerida por (2) deve consistir da
divisão do membro arredondado, normal a seu eixo, a
meia distância e extremidades da solda. Tal divisão
deve ser feita em um número de combinações de
tamanhos de material representativos da faixa usada pelo
Empreiteiro na construção.
4.12 Soldas de Filete para Conexões
Tubulares e Não Tubulares
4.12.1 Tipo e Número de Espécimes. Exceto quando
de outra forma permitido pela Cláusula 4, o tipo e
número de espécimes que devem ser testados para
qualificar WPS de uma solda de filete de passe único
e/ou solda de filete de passe múltiplosão mostrados na
Tabela 4.4. O teste de qualificação pode ser para
uma solda de filete de passe único ou solda de
filete de passe múltiplo ou ambos.
4.12.2 Teste de Solda de Filete. Uma junta em T- de
filete soldada, como mostrado na Figura 4.19 para
placa ou Figura 4.20 para cano (Detalhe A ou Detalhe
B), deve ser feita para cada WPS e posição a ser usada
na construção. É requerido teste para o tamanho
máximo de solda de filete de passe único e para o
tamanho mínimo de solda de filete de passe múltiplo
usados em construção. Esses dois testes de solda de
filete podem ser combinados em um único teste de
ligação soldada ou montagem ou individualmente
qualificados co mo qualificações independentes.
Cada ligação soldada deve ser cortada
perpendicularmente à direção de soldagem em locais
AWS D1.1/D1.1M:2012 ` 4. QUALIFICAÇÃO
131
mostrados na Figura 4.19 ou Figura 4.20, conforme
aplicável. Espécimes representando uma face de cada
corte devem constituir um espécime de análise
macrográfica e devem ser testados em conformidade
com 4.9.4.
4.12.3 Teste de Verificação de Consumíveis. Se o
consumível de soldagem proposto e a WPS proposta
para soldar a placa de teste ou cano de teste da solda de
filete descrita em 4.12.2 não forem pré-qualificados ou
de outra forma qualificados pela Cláusula 4, isto é:
(1) Se os consumíveis de soldagem usados não
estiverem em conformidade com as provisões pré-
qualificadas da Cláusula 3, e também
(2) Se a WPS usando o consumível proposto não
foi estabelecida pelo Empreiteiro em conformidade com
4.10 ou 4.11, então uma placa de teste de solda em
chanfro CJP deve ser soldada para qualificar a combinação
proposta.
A placa de teste deve ser soldada como segue:
(1) A placa de teste deve ter a configuração de
chanfro mostrada na Figura 4.21 (Figura 4.22 para
SAW), com reforço de aço.
(2) A placa deve ser soldada na posição 1G (plana).
(3) O comprimento de placa deve ser adequado para
fornecer espécimes de teste requeridos e orientados como
mostrado na Figura 4.23.
(4) As condições de corrente, voltagem, velocidade
de deslocamento e fluxo de gás do teste de soldagem
devem ser tão próximas quanto possível daquelas a
serem usadas para fazer soldas de filete de produção.
Essas condições estabelecem a WPS pela qual, quando
soldas de filete de produção são feitas, modificações nas
variáveis essenciais serão medidas em conformidade
com 4.8.
A placa de teste deve ser testada como segue:
(1) Dois espécimes de flexão lateral (Figura 4.13)
e um espécime de teste de tensão de metal
depositado (Figura 4.18) devem ser removidos da
placa de teste, como mostrado na Figura 4.23.
(2) Os espécimes de teste de flexão devem ser
testados em conformidade com 4.9.3.1. Esses
resultados de teste devem estar em conformidade com
os requisitos de 4.9.3.3.
(3) O espécime de teste de tensão deve ser testado
em conformidade com 4.9.3.6. O resultado de teste
deve determinar o nível de resistência para o
consumível de soldagem, que deve estar em
conformidade com os requisitos da Tabela 2.3 ou o
nível de resistência do metal base sendo soldado.
4.13 Soldas em Chanfro CJP para
Conexões Tubulares
Soldas em chanfro CJP devem ser classificadas como
segue:
(1) Juntas de topo CJP com reforço ou goivagem
por trás (ver 4.13.1).
(2) Juntas de topo CJP sem reforço soldado a
partir de apenas um lado (ver 4.13.2).
(3) Conexões em T-, Y-, K- com reforço ou
goivagem por trás (ver 4.13.3).
(4) Conexões em T-, Y-, K- sem reforço soldado a
partir de apenas um lado (ver 4.13.4).
4.13.1 Juntas de Topo CJP com Reforço ou
Goivagem por Trás. Uma WPS com reforço ou
goivagem por trás deve ser qualificada usando o detalhe
mostrado na Figura 4.25(A) (com goivagem por trás) ou
Figura 4.25(B) (com reforço).
4.13.2 Juntas de Topo CJP sem Reforço Soldado a
Partir de Apenas um Lado. Uma WPS sem reforço
soldado a partir de apenas um lado deve ser qualificada
usando o detalhe de junta mostrado na Figura 4.25(A).
4.13.3 Conexões em T-, Y-, ou K- com Reforço ou
Goivagem por Trás. Uma WPS para conexões tubulares
em T-, Y-, ou K- com reforço ou goivagem por trás deve
ser qualificada usando:
(1) o cano OD nominal apropriado selecionado da
Tabela 4.2(2), e
(2) o detalhe da junta da Figura 4.25(B), ou
(3) para cano OD nominal igual ou maior que 24 in
[600 mm], uma qualificação de placa em conformidade
com 4.9 usando o detalhe de junta da Figura 4.25(B).
4.13.4 Conexões em T-, Y-, ou K- sem Reforço
Soldado a Partir de Apenas um Lado. Quando
qualificação é requerida, uma WPS para conexões em T-
, Y-, ou K- sem reforço soldado a partir de apenas um
lado deve requerer o seguinte:
4.13.4.1 WPSs sem Status Pré-qualificado. Para
u ma WPS cujas variáveis essenciais estejam for a da
faixa pré-qualificada, qualificação para soldas em
chanfro tubulares CJP devem requerer o seguinte:
(1) Qualificação em conformidade com a Figura
4.27 para canos com diâmetros externos maiores que ou
iguais a 4 in [100 mm] ou Figura 4.27 e Figura 4.29
para tubos de caixa. Qualificação em conformidade
com a Figura 4.28 para canos com diâmetro externo
menor que 4 in [100 mm] ou Figura 4.28 e Figura 4.29
para tubos de caixa.
(2) Uma Amostra de Junta ou Maquete Tubular. A
amostra de junta ou maquete tubular deve fornecer pelo
menos uma seção de análise macrográfica para cada uma das
seguintes condições:
(a) O chanfro combinando a maior profundidade
de chanfro com o menor ângulo de chanfro, ou
combinação de chanfros a serem usados: teste com
posição vertical de soldagem.
(b) A abertura de raiz mais estreita a ser usada
com um ângulo de chanfro de 37,5°: um teste a ser
soldado na posição plana e um teste a ser soldado na
posição suspensa.
AWS D1.1/D1.1M:2012 ` 4. QUALIFICAÇÃO
132
(c) A abertura de raiz mais larga a ser usada com
um ângulo de chanfro de 37,5°: um teste a ser soldado
na posição plana e um teste a ser soldado na posição
suspensa.
(d) apenas para conexões de caixa correspondentes,
o ângulo de chanfro, dimensão de ângulo e raio de canto
mínimos a serem usados em combinação: um teste na
posição horizontal.
(3) O espécime de ensaio macrográfico requerido em
(1) e (2) acima deve ser examinado à procura de
descontinuidades e deve ter:
(a) Nenhuma trinca
(b) Fusão completa entre camadas adjacentes
de metal de solda e entre metal de solda e metal base
(c) Detalhes de solda em conformidade com o
detalhe especificado, mas sem nenhuma das variações
proibidas em 5.24.
(d) Nenhuma mordedura excedendo os valores
permitidos em6.9.
(e) Para porosidade de 1/32 in [1 mm] ou maior,
a porosidade acumulada não deve exceder 1/4 in [6 mm]
(f) Nenhuma escória acumulada, da qual a
soma da maior dimensão não deve exceder 1/4
in [6 mm]
Aqueles espécimes que não estiverem em conformidade
com (a) a (f) devem ser considerados inaceitáveis; (b) a
(f) não aplicáveis a soldagem backup.
4.13.4.2 Soldas em Chanfro CJP em uma
Conexão em T-, Y-, ou K- de WPS com Ângulos
Diedros Menores que 30°. A amostra de junta descrita
em 4.13.4.1(2)(a) deve ser requerida. Três seções de
ensaio macrográfico devem ser cortadas dos
espécimes de teste, devem estar em conformidade com
os requisitos de 4.13.4.1(3), e devem mostrar a solda
teórica requerida (com a devida compensação para
soldagens back-up a ser descontada, como mostrado
nos Detalhes C e D das Figuras 3.8–3.10) (ver Figura
4.26 para detalhes de junta de teste).
4.13.4.3 Soldas em Chanfro CJP em uma
Conexão em T-, Y-, ou K- de WPS Usando GMAW-
S. Para conexões em T-, Y-, e K-, quando GMAW-S é
usada, qualificação em conformidade com a Cláusula 4
deve ser requerida antes de soldar as configurações
padrão de junta detalhadas em 3.13.5. A junta testada
deve incorporar um chanfro em bisel simples de 37,5°,
offset raiz e anel de restrição como mostrado na Figura
4.27.
4.13.4.4 Ligações Soldadas que Requerem
Tenacidade CVN. WPSs para juntas de topo (costuras
longitudinais ou circunferenciais) no âmbito de 0,5D de
membros de ramificação anexados, em conexão tubular
de juntas q u e requeiram testes CVN sob 2.27.2.2,
devem ser requeridos para demonstrar energia
absorvida CVN de metal de solda de 20 pés libra [27
J] na LAST, (Lowest Anticipated Service Temperature
– Temperatura Antecipada de Serviço mais Baixa), ou a
0°F [–18°C], o que for menor. Se especificações AWS
para os materiais de soldagem a serem usados não
abrangem esse requisito, ou se a soldagem de produção
está fora da faixa abordada por teste anterior, por
exemplo, testes por especificações de metal de adição
AWS, então os testes CVN de metal de solda devem ser
feitos durante qualificação WPS, como descrito na Parte
D dessa cláusula.
4.14 Conexões em T-, Y-, ou K- e
Juntas de Topo Tubulares PJP
Quando soldas em chanfro PJP são especificadas, em
conexões em T-, Y-, ou K- ou soldas de topo, a qualifi-
cação deve estar em conformidade com a Tabela 4.3.
4.15 Soldas de Tampão para
Conexões Tubulares e Não
Tubulares
Quando soldas de tampão são especificadas,
qualificação WPS deve estar em conformidade com
4.30.
4.16 Processos de Soldagem que
Requerem Qualificação
4.16.1 ESW, EGW, GTAW, e GMAW-S. ESW, EGW,
GTAW, e GMAW-S podem ser usados, contanto que as
WPSs qualificadas em conformidade com os requisitos
da Cláusula 4. Observe que as limitações de variável
essencial na Tabela 4.5 para GMAW devem também
aplicar-se a GMAW-S.
4.16.2 Outros Processos de Soldagem. Outros
processos de soldagem não listados em 3.2.1 ou 4.16.1
podem ser usados, contanto que as WPSs sejam
qualificadas por teste. A limitação de variáveis
essenciais aplicáveis a cada processo de soldagem deve
ser estabelecida pelo Empreiteiro desenvolvendo a WPS
e aprovada pelo Engenheiro. Faixas de variável
essencial devem ser baseadas em evidência
documentada de experiência com o processo, ou uma
série de testes deve ser conduzida para estabelecer
limites de variável essencial. Qualquer alteração em
variáveis essenciais fora da faixa então estabelecida
deve requerer requalificação.
4.17 Requisito WPS (GTAW)
Antes do uso, o Empreiteiro deve preparar uma WPS(s)
e qualificar cada WPS em conformidade com os
requisitos da Cláusula 4.
4.18 Requisitos WPS (ESW/EGW)
Antes do uso, o Empreiteiro deve preparar e
qualificar cada WPS ESW ou EGW para ser usada de
acordo com os requisitos da Cláusula 4. A WPS deve
incluir os detalhes de junta, tipo e diâmetro de metal de
AWS D1.1/D1.1M:2012 ` 4. QUALIFICAÇÃO
133
adição, amperagem, voltagem (tipo e polaridade),
velocidade de deslocamento vertical, se não for uma
função automática de comprimento de arco ou taxa de
deposição, oscilação (velocidade transversal,
comprimento e tempo de contato), tipo de proteção
inclusive taxa de fluxo e ponto de orvalho do gás ou
tipo de fluxo, tipo de sapata de modelagem, PWHT, se
usado, e outras informações pertinentes.
4.18.1 Qualificação Anterior. WPSs que tenham sido
anteriormente qualificadas podem ser usadas, contanto
que haja documentação própria, e que a WPS seja
aprovada pelo Engenheiro.
4.18.2 Requisitos de Teste para Tensão de Metal
Depositado. Antes do uso, o Empreiteiro deve
demonstrar pelo teste descrito na Cláusula 4 que cada
combinação de proteção e metal de adição irá produzir
metal de solda que tenha propriedades mecânicas
especificadas na última edição de A5.25, Specification
for Carbon and Low Alloy Steel Electrodes and Fluxes
for Electroslag Welding, da AWS, ou na última edição de
A5.26, Specification for Carbon and Low Alloy Steel
Electrodes for Electrogas Welding, da AWS, conforme
aplicável, quando soldada em conformidade com WPS
.
Parte C
Qualificação de Desempenho
4.19 Geral
Os testes de qualificação de desempenho requeridos por
este código são testes especificamente projetados para
determinar a habilidade de um soldador, operador de
soldagem, ou soldador ponteador em produzir boas
soldagens. Os testes de qualificação não são projetados
para serem usados como guias para soldagem ou
soldagem provisória durante a construção. Esta última
deve ser realizada em conformidade com uma WPS.
4.19.1 Posições Qualificadas de Soldagem de
Produção
4.19.1.1 Soldadores e Operadores de Soldagem.
As posições qualificadas de soldagem de produção para
soldadores e operadores de soldagem devem estar em
conformidade com a Tabela 4.11.
4.19.1.2 Soldadores Ponteadores. Um soldador
ponteador deve ser qualificado por uma placa de teste
em cada posição em que a soldagem provisória deve ser
realizada.
4.19.2 Espessuras e Diâmetros de Produção
Qualificados
4.19.2.1 Soldadores ou Operadores de Soldagem.
A faixa de espessuras e diâmetros de soldagem de
produção qualificada para a qual um soldador ou
operador de soldagem é qualificado deve estar em
conformidade com a Tabela 4.11.
4.19.2.2 Soldadores Ponteadores. A qualificação
de soldador ponteador deve qualificar para espessuras
maiores que ou iguais a 1/8 in [3 mm], e todos os
diâmetros tubulares.
4.19.3 Qualificação de Soldador e Operador de
Soldagem Através de Qualificação WPS. Um
soldador ou operador de soldagem também pode ser
qualificado por soldar uma placa, cano ou tubulação de
teste de qualificação WPS satisfatória, que atenda os
requisitos de 4.9. O soldador ou operador de soldagem
é assim qualificado em conformidade com 4.19.1 e
4.19.2.
4.20 Tipos de Testes de
Qualificação Requeridos
4.20.1 Soldadores e Operadores de Soldagem. O tipo
e número de testes de qualificação requeridos para
soldadores e operadores de soldagem deve estar
em conformidade com a Tabela 4.11. Detalhes sobre
os requisitos individuais de NDT e de teste mecânico
são encontrados nas seguintes subcláusulas:
(1) Inspeção Visual (ver 4.9.1) (use requisitos
WPS)
(2) Flexão de face, raiz, e lateral (ver 4.9.3.1)
(use requisitos WPS)
(3) Análise macrográfica (ver 4.31.2)
(4) R u p t u r a d e S o l d a d e Filete (ver
4.31.4)
4.20.1.1 Substituição de RT para Testes de Flexão
Guiados. Exceto para juntas soldadas por GMAW-S,
um exame radiográfico da placa de teste ou cano de
teste de qualificação de um soldador ou operador de
soldagem pode ser feito em lugar dos testes de flexão
descritos em 4.20.1(2) (ver 4.31.3 para requisitos RT).
Em lugar de teste mecânico ou RT das montagens de
teste de qualificação, um operador de soldagem pode
ser qualificado por RT das 15 in [380 mm] iniciais de
uma solda em chanfro de produção. A faixa de
espessura material qualificada deve ser aquela mostrada
na Tabela 4.11.
4.20.1.2 Testes de Flexão Guiados. Espécimes de
teste mecânicos devem ser preparados ao cortar a placa,
cano ou tubulação de teste como mostrado nas Figuras
4.21, 4.30, 4.31, 4.32, 4.33, e 4.34 para qualificação de
soldador ou Figura 4.22, 4.33, ou 4.36 para qualificação
de operador de soldagem, o que for aplicável. Esses
espécimes devem ser aproximadamente retangulares em
seção transversal, e ser preparados para teste em
conformidade com a Figura 4.12, 4.13, 4.14, ou 4.18, o
que for aplicável.
4.20.2 Soldadores Ponteadores. O soldador
ponteador deve fazer uma solda provisória de tamanho
máximo de 1/4 in [6 mm] de comprimento de
aproximadamente 2 in [50 mm] no espécime de
ruptura de solda de filete como mostrado na Figura
4.39.
4.20.2.1 Extensão da Qualificação. Um soldador
ponteador que passe o teste para ruptura de solda de
filete deve ser qualificado para realizar solda
provisória em todos os tipos de juntas (exceto soldas
em chanfro CJP, soldadas a partir de um lado sem
reforço; por exemplo, juntas de topo e conexões em T-,
AWS D1.1/D1.1M:2012 ` 4. QUALIFICAÇÃO
134
Y-, e K-) para o processo e posição para os quais o
soldador ponteador é qualificado. Soldas provisórias que
se encaixem na exceção acima devem ser realizadas por
soldadores completamente qualificados para o processo
e posição em que a soldagem deve ser feita.
4.21 Tipos de Solda para
Qualificação de Desempenho de
Soldador e Operador de
Soldagem
Para o propósito de qualificação de soldador e operador
de soldagem, os tipos de solda devem ser classificados
como segue:
(1) Soldas em Chanfro CJP para Conexões Não
Tubulares (ver 4.24)
(2) Soldas em Chanfro PJP para Conexões Não
Tubulares (ver 4.25)
(3) Soldas de Filete para Conexões Não Tubulares
(ver 4.26)
(4) Soldas em Chanfro CJP para Conexões
Tubulares (ver 4.27)
(5) Soldas em Chanfro PJP para Conexões
Tubulares (ver 4.28)
(6) Soldas de Filete para Conexões Tubulares (ver
4.29) (7) Soldas de Tampão (Plug e Slot) paraConexões
Tubulares e Não Tubulares (ver 4.30)
4.22 Preparação de Formulários de
Qualificação de Desempenho
A equipe de soldagem deve seguir uma WPS aplicável
ao teste de qualificação requerido. Todas as limitações
de variável essencial de WPS de 4.8 devem aplicar-se,
em acréscimo às variáveis essenciais de desempenho de
4.23. O Registro de Qualificação de Desempenho de
Soldagem (WPQR) deve servir como verificação por
escrito e deve listar todas as variáveis essenciais
aplicáveis da Tabela 4.12. Sugestões de formulários são
encontradas no Anexo N.
4.23 Variáveis Essenciais
Alterações além da limitação de variáveis essenciais
para soldadores, operadores de soldagem, ou soldadores
ponteadores mostrados na Tabela 4.12 devem requerer
requalificação.
4.24 Soldas em Chanfro CJP para
Conexões Não Tubulares
Ver Tabela 4.10 para os requisitos de posição para
qualificação de soldador ou operador de soldagem em
conexões não tubulares. Observe que a qualificação em
juntas com reforço qualifica para juntas de produção de
soldagem que são têm goivagem por trás e são
soldadas a partir do segundo lado.
4.24.1 Placas de Qualificação de Soldador. Os
seguintes números de figura aplicam-se aos requisitos
de posição e espessura para soldadores.
(1) Figura 4.21—Todas as Posições—
Espessura Ilimitada
(2) Figura 4.30—Posição Horizontal—
Espessura Ilimitada
(3) Figura 4.31—Todas as Posições—
Espessura Limitada
(4) Figura 4.32—Posição Horizontal—Espessura
Limitada
4.24.2 Testes de Placa de Qualificação para Operador
de Soldagem
4.24.2.1 Para Soldas que Não Sejam EGW, ESW, e
Soldas de Tampão (Plug). A placa de teste de
qualificação para um operador de soldagem que não use
EGW ou ESW, ou soldagem de tampão deve estar em
conformidade com a Figura 4.22. Isso deve qualificar
um operador de soldagem para soldagem de filete e em
chanfro em material de espessura ilimitada para o
processo e posição testados.
4.24.2.2 Para ESW e EGW. A placa de teste de
qualificação para um operador de soldagem ESW ou
EGW deve consistir em soldar uma junta de espessura
máxima de material a ser usado em construção, mas a
espessura do material de solda de teste não precisa exceder
1-1/2 in [38 mm] (ver Figura 4.35). Se uma solda de
teste de espessura de 1-1/2 in [38 mm] é feita, não há
necessidade de fazer teste para uma espessura menor. O
teste deve qualificar o operador de soldagem para
soldas em chanfro e de filete em material de espessura
ilimitada para esse processo e posição de teste.
4.25 Soldas em Chanfro PJP para
Conexões Não Tubulares.
Qualificação para soldas em chanfro CJP deve
qualificar para todas as soldas em chanfro PJP.
4.26 Soldas de Filete para Conexões
Não Tubulares.
Qualificação de soldas em chanfro CJP deve qualificar
para soldas de filete. No entanto, onde apenas
qualificação de solda de filete é requerida, ver Tabela
4.11.
4.27 Soldas em Chanfro CJP para
Conexões Tubulares.
Testes de qualificação para soldador ou operador de
soldagem devem usar os seguintes detalhes:
(1) Juntas de topo em chanfro CJP com reforço ou
goivagem por trás em cano. Use a Figura 4.24(B).
AWS D1.1/D1.1M:2012 ` 4. QUALIFICAÇÃO
135
(2) Juntas de topo em chanfro CJP sem reforço ou
goivagem por trás. Use a Figura 4.24(A).
(3) Juntas de topo em chanfro CJP ou conexões
em T-, Y-, e K- com reforço em tubulação de
caixa. Use a Figura 4.24(B) em cano (qualquer
diâmetro), placa ou tubulação de caixa.
(4) Conexões em T-, Y-, e K- em Chanfro CJP
soldadas a partir de um lado com reforço em cano. Use
a Figura 4.24(B) em cano de diâmetro apropriado.
(5) Conexões em T-, Y-, e K- em Chanfro CJP
soldadas a partir de um lado sem reforço em cano. Use
a Figura 4.27 para diâmetro nominal de cano de ≥6 in
[150 mm] ou Figura 4.28 para cano nominal de ≤4 in
[100 mm].
(6) Conexões em T-, Y-, e K- em Chanfro CJP
soldadas a partir de um lado sem reforço ou goivagem
por trás em tubulação de caixa. As opções são as
seguintes:
(a) Figura 4.27 em cano (qualquer diâmetro) ou
tubulação de caixa mais Figura 4.29 em tubulação de
caixa.
(b) Figura 4.27 em tubulação de caixa com
espécime de análise macrográfica removido dos locais
mostrados na Figura 4.29.
Ver Tabela 4.11 para as faixas de produção de diâmetro
e espessura qualificados pelos diâmetros e espessuras da
montagem de teste.
4.27.1 Outros Detalhes de Junta ou WPSs. Para
detalhes de junta, WPSs, ou profundidade presumida de
boas soldas que sejam mais difíceis que aquelas
descritas aqui, um teste descrito em 13.4.2 deve ser
realizado por cada soldador em acréscimo aos testes
6GR (ver Figura 4.28 ou 4.29). A posição de teste deve
ser vertical.
4.28 Soldas em Chanfro PJP para
Conexões Tubulares.
Qualificação para soldas em chanfro CJP em conexões
tubulares devem qualificar para todas as soldas em
chanfro PJP.
4.29 Soldas de Filete para Conexões
Tubulares.
Ver Tabela 4.11 para requisitos de qualificação de solda
de filete.
4.30 Soldas de Tampão (Plug e
Slot) para Conexões Tubulares
e Não Tubulares.
Qualificação para soldas em chanfro CJP em conexões
tubulares ou não tubulares devem qualificar para todas
as soldas de tampão (plug e slot).
Ver Tabela 4.10 apenas para qualificação de solda de
tampão (plug e slot). A junta deve consistir de um
buraco de diâmetro de 3/4 in [20 mm] em uma placa de
espessura de 3/8 in [10 mm] com uma placa de reforço
de espessura mínima de 3/8 in [10 mm] (ver Figura
4.38).
4.31 Métodos de Teste e Critérios
de Aceitação para Qualificação
de Soldador e Operador de
Soldagem
4.31.1 Inspeção Visual. Ver 4.9.1 para critérios de
aceitação
4.31.2 Ensaio Macrográfico. Os espécimes de teste
devem ser preparados com um acabamento adequado
para exame macrográfico. Uma solução adequada deve
ser usada para textura, para dar uma definição clara da
solda.
4.31.2.1 Ensaios Macrográficos de Solda de
Filete e de Tampão.
A face da análise macrográfica deve ser lisa para
textura.
(1) Os ensaios macrográficos de solda de tampão
(plug) devem ser cortados das juntas de teste por:
(a) Qualificação de Soldador—Figura4.38
(b) Qualificação de Operador de Soldagem—
Figura4.38
(2) Os ensaios macrográficos de solda de filete devem
ser cortados a partir das juntas de teste por:
(a) Qualificação de Soldador—Figura4.37
(b) Qualificação de Operador de Soldagem—
Figura4.37
4.31.2.2 Ensaio Macrográfico para Conexões em
T-, Y-, e K-. A junta de ângulo de teste de análise
macrográfica para conexões em T-, Y-, e K- em
tubulações de caixa na Figura 4.29 deve ter quatro
espécimes de análise macrográfica cortados a partir dos
cantos da solda nos locais mostrados na Figura 4.29.
Uma face de cada espécime de canto deve ser lisa
para textura. Se o soldador for testado em um cupom
6GR (Figura 4.28) usando tubulação de caixa, os quarto
espécimes de canto para teste de análise macrográfica
podem ser cortados a partir dos cantos do cupom 6GR
em u m a maneira similar à Figura 4.29. Uma face
de cada espécime de canto deve ser lisa para textura.
4.31.2.3 Critérios de Aceitação do Ensaio
Macrográfico. Para qualificação aceitável, o espécime
de teste, quando inspecionado visualmente, deve estar
em conformidade com os seguintes requisitos:
(1) Soldas de filete devem ter fusão com a raiz da
junta mas não necessariamente além.
(2) O tamanho mínimo de solda deve atender o
tamanho de solda de filete especificado.
AWS D1.1/D1.1M:2012 ` 4. QUALIFICAÇÃO
136
(3) Soldas de f ilete e a junta de ângulo para ensaio
macrográfico em conexões em T-, Y-, e K- em
tubulações de caixa, Figura 4.29, devem ter:
(a) Nenhuma trinca
(b) Fusão completa entre camadas adjacentes
de metais de solda e entre metal de solda e metal base
(c) Perfis de solda em conformidade com
detalhe pretendido, mas sem qualquer das variações
proibidas em 5.24
(d) Nenhuma mordedura excedendo 1/32 in [1
mm]
(e) Para porosidade de 1/32 in [1 mm] ou maior,
porosidade acumulada que não exceda 1/4 in [6 mm]
(f) Sem escória acumulada, da qual a soma das
maiores dimensões não deve exceder 1/4 in [4 mm]
(4) Soldas de Tampão ( Plug) devem ter:
(a) Nenhuma trinca
(b) Fusão completa com o reforço e com os
lados do orifício
(c) Nenhuma escória visível que exceda o
comprimento total acumulado de 1/4 in [6 mm]
4.31.3 RT. Se RT é usado em lugar dos testes de
flexão prescritos, o reforço de solda não precisa ser
retificado ou aplainado de outra forma para inspeção, a
menos que as irregularidades de sua superfície ou
junção com o metal base causariam desconti-nuidades
de solda sujeitas a objeções a serem obscurecidas na
radiografia. Se o reforço for removido para RT, a raiz
deve ser retificada por jateamento (ver 5.24.3.1) com o
metal base.
4.31.3.1 Procedimento e Técnica de Teste RT. O
procedimento e técnica RT devem estar em
conformidade com os requisitos da Parte E, Cláusula
6. Para qualificação de soldador, exclua 1-1/4 in [32
mm] em cada extremidade da solda de avaliação na
placa de teste; para qualificação de operador de
soldagem exclua 3 in [75 mm] em cada extremidade do
comprimento da placa de teste. Canos ou tubulações de
teste soldados de diâmetro de 4 in [100 mm] ou maior
devem ser examinados por um mínimo de metade do
perímetro da solda selecionada para incluir uma amostra
de todas as posições soldadas. (Por exemplo, um cano
ou tubo de teste soldado na posição 5G, 6G, ou 6GR
deve ser radiografado a partir da linha de centro do
topo para a linha de centro do fundo em todos os
lados.) Cano ou tubulação de teste soldados com diâmetro
menor que 4 in [100 mm] devem requere RT de100%.
4.31.3.2 Critérios de Aceitação RT. Para
qualificação aceitável, a solda, como revelado pela
radiografia, deve estar em conformidade com os
requisitos de 6.12.2, exceto que 6.12.2.2 não deve
aplicar-se.
4.31.4 Teste de Ruptura de Solda de Filete. O
comprimento todo da solda de filete deve ser
examinado visualmente, e então um espécime de
comprimento de 6 in [150 mm] (ver Figura 4.37) ou
uma quarta parte de uma montagem da solda de filete
de cano deve ser carregada de tal forma que a raiz da
solda esteja em tensão. Pelo menos um início e
interrupção de soldagem deve estar localizado dentro
de espécime de teste. A carga deve ser aumentada ou
repetida até que o espécime frature ou dobre-se
completamente sobre si mesmo.
4.31.4.1 Critérios de Aceitação para Teste de
Ruptura de Solda de Filete. Para passar o exame visual
anterior ao teste de ruptura, a solda deve apresentar uma
aparência razoavelmente uniforme e deve estar livre de
sobreposição, trincas e mordedura que exceda os
requisitos de 6.9. Não deve haver porosidade visível na
superfície da solda.
O espécime quebrado deve passar se:
(1) O espécime dobra-se sobre si mesmo, ou
(2) A solda de filete, se fraturada, tem uma
superfície de fratura que mostra fusão completa com a
raiz da junta sem inclusão ou porosidade maior que
3/32 in [2,5 mm] em sua maior dimensão, e
(3) A soma das maiores dimensões de todas as
inclusões e porosidade não deve exceder 3/8 in [10 mm]
no espécime de 6 in [150 mm].
4.31.5 Espécimes de Flexão de Raiz, Face e Lateral.
Ver 4.9.3.3 para critérios de aceitação.
4.32 Método de Teste e Critérios de
Aceitação para Qualificação de
Soldador Ponteador
Uma força deve ser aplicada ao espécime como
mostrado na Figura 4.35 até que ocorra a ruptura. A
força pode ser aplicada por quaisquer meios
convenientes. A superfície da solda e da fratura deve ser
examinada visualmente à procura de defeitos.
4.32.1 Critérios de Aceitação Visual. A solda
provisória deve apresentar uma aparência
razoavelmente uniforme e deve ser livre de
sobreposição, trincas e mordedura excedendo 1/32 in [1
mm]. Não deve haver porosidade visível na superfície
da solda provisória.
4.32.2 Critérios de Aceitação de Teste Destrutivo.
A superfície fraturada da solda provisória deve mostrar
fusão com a raiz, mas não necessariamente além, e não
deve exibir fusão incompleta dos metais base, ou
qualquer inclusão ou porosidade maior que 3/32 in [2,5
mm] em sua maior dimensão.
4.33 Reteste.
Quando um soldador, operador de soldagem ou soldador
ponteador falha em um teste de qualificação, ou se há
razões específicas para questionar suas habilidades de
soldagem, ou se o período de efetividade terminou, o
seguinte deve aplicar-se:
4.33.1 Requisitos de Reteste de Soldador e
Operador de Soldagem
AWS D1.1/D1.1M:2012 ` 4. QUALIFICAÇÃO
137
4.33.1.1 Reteste Imediato. Um reteste imediato
pode ser feito consistindo de duas soldas de cada tipo e
posição em que o soldador ou operador de soldagem
falhou. Todos os espécimes de reteste devem atender
todos os requisitos especificados.
4.33.1.2 Reteste Após Treino ou Prática
Adicional. Um reteste pode ser feito, contanto que haja
evidência de que o soldador ou operador de soldagem
tenha tido treino ou prática adicional. Um reteste
completo dos tipos e posições em que houve falência ou
em questão deve ser feito.
4.33.1.3 Reteste Após Término de Período de
Efetividade de Qualificação. Quando o período de
qualificação de um soldador ou operador de soldagem
tenha terminado, um teste de requalificação deve ser
requerido. Soldadores têm a opção de usar uma
espessura de teste de 3/8 in [10 mm] para qualificar
qualquer espessura de soldagem de produção maior ou
igual a 1/8 in [3 mm].
4.33.1.4 Exceção—Falência de um Reteste de
Requalificação. Nenhum reteste imediato deve ser
permitido após falência de um teste de requalificação.
Um reteste deve ser permitido apenas após treino ou
prática adicional por 4.33.1.2.
4.33.2 Requisitos de Reteste de Soldador Ponteador
4.33.2.1 Reteste sem Treino Adicional. Em caso
de falha em passar nos requisitos de teste, o soldador
ponteador pode fazer um reteste sem treino adicional.
4.33.2.2 Reteste Após Treino ou Prática
Adicional. Um reteste pode ser feito, contanto que o
soldador ponteador tenha tido treino ou prática
adicional. Um reteste completo deve ser requerido.
Parte D
Requisitos de Teste CVN
4.34 Geral
4.34.1 Os requisitos de teste e procedimentos de teste
CVN nessa seção devem aplicar-se apenas quando
especificado nos documentos d e c o n t r a t o e m
conformidade com 5.26.5(3)[d] e 4.2.1.3, e Tabela 3.1
desse código. Embora os requisitos dessa seção não
abordem teste CVN de metais base, é presumido que os
metais base sejam adequados para aplicações em que
teste CVN da WPS é requerido.
4.34.2 Os espécimes de teste CVN devem ser usinados
e testados em conformidade com E 23, Standard Methods
for Notched Bar Impact Testing of Metallic
Materials, da ASTM, para Espécime de Impacto Tipo A
Charpy (viga simples), A 370, Standard Test Method
and Definitions for Mechanical Testing of Steel
Products, da ASTM ou B4.0, Standard Methods for
Mechanical Testing of Welds, da AWS.
4.35 Locais de Teste
4.35.1 O local de teste para espécimes individuais de
teste CVN, a menos que especificado de outra forma
em documentos de contrato, deve ser como mostrado na
Figura 4.40 e na Tabela 4.14.
4.35.2 O posicionamento do entalhe para todos os
espécimes de teste CVN deve ser feito primeiro pela
usinagem dos espécimes da solda de teste à
profundidade apropriada como mostrado na Figura
4.40. Os espécimes deveriam ser feitos levemente mais
compridos para permitir o exato posicionamento do
entalhe. Em seguida, as barras deveriam ser atacadas
com um agente de gravação moderado como nital 5%,
para revelar a localização da zona de fusão da solda e
HAZs. A linha de centro do entalhe deve então ser
localizada no espécime, como mostrado na Figura 4.40.
4.36 Testes CVN
4.36.1 Há duas opções para o número de espécimes de
teste CVN a serem tomadas em um único local de teste:
Opção A-3 espécimes
Opção B-5 espécimes
4.36.2 Os espécimes de teste CVN devem ser usinados
da mesma montagem de teste soldada feita para
determinar outras propriedades de junta de solda (ver
Figura 4.7, 4.8, 4.10 ou 4.11). Quando o tamanho
das montagens de teste soldadas não é suficiente para
satisfazer todos os requisitos de espécime de teste
mecânico, uma montagem de teste soldada adicional
deve ser realizada. Os espécimes de teste CVN devem
sofrer usinagem a partir da montagem de teste
soldada na qual espécimes de teste de tração são
usinados.
4.36.3 Quando teste CVN é um requisito, um PQR com
testes CVN e uma WPS qualificada são requeridos. Ou
um novo PQR deve ser preparado, ou se existe um PQR
que satisfaz todos os requisitos exceto teste CVN, deve
ser necessário apenas preparar uma ligação de solda de
teste adicional com material suficiente para fornecer os
espécimes de teste CVN requeridos. Uma placa de teste
completa ou parcial (como observado acima) deve ser
soldada usando uma WPS que esteja em conformidade
com o “teste” original WPS se aplicável e com os limite
das Tabelas 4.1, 4.2, e 4.5, mais aquelas variáveis
essenciais suplementares aplicáveis apenas a teste CVN
(Tabela 4.6). Um novo PQR, ou um revisado, deve ser
preparado e uma nova ou revista WPS escrita para
acomodar as variáveis de qualificação para teste CVN.
4.36.4 A linha de centro longitudinal dos espécimes
deve ser transversal ao eixo da solda e o entalhe base
deve ser perpendicular (normal) à superfície a menos
que especificado de outra forma em documentos de
contrato.
4.36.5 O espécime padrão de 10 × 10 mm deve ser
usado quando a espessura do material de teste é de 7/16
AWS D1.1/D1.1M:2012 ` 4. QUALIFICAÇÃO
138
in [11 mm] ou maior. Espécimes de tamanho inferior
devem ser usados quando a espessura do material de
teste é menor que 7/16 in [11 mm], ou quando a
extração de espécimes de tamanho total não é possível
devido à forma da ligação soldada. Quando espécimes
de tamanho inferior são requeridos, eles devem ser
feitos para uma das dimensões mostradas na Tabela
4.15. (Observação: os maiores espécimes possíveis
devem ser usinados a partir de uma peça de teste de
qualificação.)
4.36.6 A temperatura de teste CVN deve ser
especificada nos documentos de contrato.
4.36.7 Quando espécimes de tamanho inferior são
requeridos e a largura do espécime através do entalhe é
menor que 80% da espessura do metal base, a
temperatura de teste deve ser reduzida em
conformidade com a Tabela 4.15, a menos que de outra
forma especificado nos documentos de contrato.
4.37 Requisitos de Teste
4.37.1 Requisitos de teste para soldas entre metais base
com limite de escoamento mínimo especificado de 50
ksi [345 MPa] ou menos não devem ser menores que os
requisitos mínimos da Tabela 4.14, a menos que de
outra forma especificado. Requisitos de teste para
soldas entre metais base com um limite de escoamento
mínimo especificado maior que 50 ksi [345 MPa] deve
ser especificado nos documentos de contrato. Esses
requisitos podem incluir, mas não estão limitados a,
energia absorvida, percentagem de aparência de fratura
dúctil, e valores de expansão lateral.
4.37.2 Os critérios de aceitação para cada teste devem
ser especificados em especificações e desenhos de
contrato, e devem consistir do seguinte:
(1) Valor mínimo individual – valor do qual
nenhum espécime pode estar abaixo, e
(2) Valor médio mínimo – o valor que a média
aritmética de três espécimes deve igualar ou exceder.
A menos que especificado de outra forma em desenhos
ou especificações de contrato, a aceitação de valores
para os requisitos de teste CVN descritos em 4.37.1
para soldas entre metais base com um limite de
escoamento mínimo especificado de 50 ksi [345 MPa]
ou menos, como mostrado na Tabela 4.14.
4.37.3 Se a Opção B (ver 4.36.1) for escolhida, os
espécimes com os valores mais altos e mais baixos
devem ser descartados, deixando 3 espécimes para
avaliação. Para os espécimes da Opção A e os 3
espécimes remanescentes da Opção B, 2 dos 3 valores
para os espécimes devem igualar ou exceder o valor médio
mínimo especificado. Um dos três pode ser mais baixo
que o valor médio mínimo especificado, mas não mais
baixo que o valor individual mínimo especificado, e
média dos três não deve ser menor que o valor médio
mínimo especificado.
4.38 Reteste
4.38.1 Quando os requisitos em 4.37.2 e 4.37.3 não são
atendidos, um reteste pode ser realizado. Cada valor
individual dos três espécimes remanescentes deve ser
igual ou maior que o valor médio mínimo especificado.
Espécimes de reteste devem ser removidos das
ligações soldadas de teste originais. Se espécimes
não puderem ser fornecidos a partir dessas ligações
soldadas, uma nova ligação soldada de teste deve ser
realizada e todos os testes mecânicos requeridos por
esse código devem ser realizados.
4.39 Relatório
4.39.1 Todos os valores medidos de testes CVN
requeridos por este código, documentos de contrato, ou
especificações devem ser relatados no PQR.
CJP- Penetração Completa de Junta
PJP- Penetração Parcial de Junta
a
Qualifica para um eixo de soldagem com uma linha essencialmente reta, inclusive soldagem ao longo de uma linha paralela ao eixo de um cano circular
b
Qualifica para soldas circunferenciais em canos com diâmetro exterior nominal igual ou maior que 24 in [600 mm]
c
Detalhes de junta de topo de produção sem reforço ou goivagem por trás requerem teste de qualificação do detalhe de junta mostrado na Figura 4 25(A)
d
Limitado a detalhes de junta pré-qualificados (ver 3 12 ou 3 13)
e
Para juntas de produção de conexões em T-, Y-, e K- CJP que estejam em conformidade com a Figura 3 8, 3 9, ou 3 10 e Tabela 3 6, use o detalhe da Figura 4 27 para teste Para outras juntas de produção, ver 4 13 4 1
f
Para juntas de produção de conexões em T-, Y-, e K- CJP que estejam em conformidade com a Figura 3 6, e Tabela 3 6, use detalhe das Figuras 4 27 e 4 29 para teste, ou, como alternativa, teste a junta da Figura 4 27 e corte
espécimes de análise macrográfica dos locais de canto mostrados na Figura 4 29 Para outras juntas de produção, ver 4 13 4 1
g
Para juntas de produção de conexões em T-, Y-, e K- PJP que estejam em conformidade com a Figura 3 5, use detalhe da Figura 4 25(A) ou Figura 4 25(B) para teste
h
Para conexões de caixa correspondente com raios de canto menores que duas vezes a espessura do membro de corda, ver 3 12 4 1
i
Soldas de filete em conexões de produção em T-, Y-, ou K- devem conformar-se à Figura 3 2 Qualificação WPS deve estar conforme a 4 12
Tabela 4.1
Qualificação WPS—Posições de Soldagem de Produção Qualificadas por Testes de Placa, Cano e Tubo de Caixa
(ver 4.4)
Teste de Qualificação
Soldagem de Produção de Placa
Qualificada
Soldagem de Produção de Cano Qualificada Soldagem de Produção de Tubo de Caixa Qualificada
Tipo de
Solda
Posições
Chanfro
CJP
Chanfro
PJP
Filete
Junta de Topo
Conexões em
T-, Y-, K- Filete
Junta de Topo
Conexões em
T-, Y-, K- Filete
CJP PJP CJP PJP CJP PJP CJP PJP
p
L
A
C
A
CJP
Chanfro
lG
2G
3G
4G
F
F, H
V
OH
F
F, H
V
OH
F
F, H
V
OH
Fb
(F, H)b
Vb
OHb
Fb
(F, H)b
Vb
OHb
F
F, H
V
OH
F
F, H
V
OH
F
F, H
V
OH
F
F, H
V
OH
Filete
lF
2F
3F
4F
F
F, H
V
OH
F
F, H
V
OH
F
F, H
V
OH
Tampão Qualifica Soldagem de Tampão Apenas para as Posições Testadas
T
u
B
u
L
A
R
CJP
Chanfro
lG Rotacionado
2G
5G
(2G + 5G)
6G
6GR
F
F, H
F,V,OH
Todos
Todos
Todos
F
F, H
F,V,OH
Todos
Todos
Todos
F
F, H
F,V,OH
Todos
Todos
Todos
Fc
( F, H)c
(F,V,OH)c
Todosc
Todosc
Todosd
F
F, H
F,V,OH
Todos
Todos
Todos
Todose
Todose
F
F, H
F,V,OH
Todosg
Todosg
Todos
F
F, H
F,V,OH
Todos
Todos
Todos
Fc
( F, H)c
(F,V,OH)c
Todosc
Todosc
Todosd
F
F, H
F,V,OH
Todos
Todos
Todos
Todosf
Todosf
F
F, H
F,V,OH
Todosg.h
Todosg.h
Todos
F
F, H F,V,OH
Todos
Todos
Todos
Filete
lF Rotacionado
2F
2F Rotacionado
4F
5F
F
F,H
F,H
F,H,OH
Todos
F
F,H
F,H
F,H,OH
Todos
F
F,H
F,H
F,H,OH
Todos
4.
QUALIFICAÇÃO
AWS
D1.1/D1.1M:2010
AWS D1.1/D1.1M:2012 4. QUALIFICAÇÃO
140
Tabela 4.2
Qualificação WPS—Soldas em Chanfro CJP: Número e Tipo de Espécimes de Teste e
Faixa de Espessura e Diâmetro Qualificada (ver 4.5) (Dimensões em Polegadas)
1 Testes em Placa a,b
Espessura (T)
Norninal de Placa
Testada, in
Número de Espécimes
Espessura c,d
Nominal de Placa, Cano ou Tubo
Qualificada, in
Tensão de Seção
Reduzida (ver Fig
4 14)
Flexão de Raiz
(ver Fig
4 12)
Flexão de Face
(ver Fig
4 12)
Flexão Lateral
(ver Fig
4 13)
Mín Máx
l/8 T 3/8 2 2 2 (Note i) 1/8 2T
3/8<T<l 2 - - 4 1/8 2T
1 e acima 2 - - 4 1/8 Ilimitado
2 Testes em Cano ou Tubulaçãoa,g
Tamanho ou
Diâmetro Nominal
de Cano , in
EspessuraN
ominal de
Parede, T, in
Número de Espécimes
Diâmetro
Nominal de Cano
ou Tamanho de
Tubo
Qualificados, in
Espessura c,d
Nominal de Parede
de Placa, Cano ou Tubo
Qualificada, in
Tensão de
Seção
Reduzida (ver
Fig 4 14)
Flexão de Raiz
(ver Fig
4 12)
Flexão de Face
(ver Fig
4 12)
Flexão
Lateral
(ver
Fig
4 13)
Mín Máx
Canos de
Teste Job
Size
<24
l/8 T 3/8 2 2 2
(Note
i)
Diâmetro de teste
e acima
1/8 2T
3/8 <T
<314
2 - - 4
Diâmetro de teste
e acima
T/2 2T
T3/4 2 - - 4
Diâmetro de teste
e acima
3/8 Ilimitado
24
l/8 T 3/8 2 2 2
(Note
i)
Diâmetro de teste
e acima
1/8 2T
3/8 <T
<314
2 - - 4 24 e acima T/2 2T
T3/4 2 - - 4 24 e acima 3/8 Ilimitado
Canos de
Teste Padrão
2 in Sch 80
ou 3 in Sch 40
2 2 2 - 3/4 até 4 1/8 3/4
6 in Sch 120
ou 8 in Sch 80
2 - - 4 4 e acima 3/16 Ilimitado
3 Testes em ESW e EGW a,h
Espessura Nominal
de Placa Testada
Número de Espécimes
Espessura Nominal de Placa
Qualificada
Tensão de Seção
Reduzida (ver Fig
4 14)
Tensão de Metal
Depositado (ver
Fig 4 18)
Flexão Lateral
(ver Fig
4 13)
Testes CVN Mín Máx
T 2 I 4 (Note f) O.ST l.IT
a
Todas as soldas de teste de placa, cano ou tubo devem ser inspecionadas visualmente (ver 4 9 1) e sujeitas a NDT (ver 4 9 2) Uma placa, cano ou tubo de
teste deve ser requisitada para cada posição qualificada
b
Ver Figuras 4 10 e 4 11 para requisitos de teste de placa
c
Para soldas em chanfro quadrado que são qualificadas sem goivagem por trás, a espessura máxima qualificada deve ser limitada à espessura da placa de
teste
d
Qualificação de solda em chanfro CJP em qualquer espessura ou diâmetro deve qualificar qualquer tamanho de solda de filete ou solda em chanfro PJP
para qualquer espessura ou diâmetro (ver 4 11 3)
e
Qualificação com qualquer diâmetro de cano deve qualificar todas as larguras e profundidades de seção de caixa
f
Quando especificado, testes CVN devem estar em conformidade com a Cláusula 4, Parte D
g
Ver Tabela 4 1 para os detalhes em chanfro requeridos para qualificação de juntas de topo tubulares e em conexões em T-, Y-, K-
h
Ver Figura 4 9 para requisitos de placa
i
Para espessura de placa ou parede de 3/8 in, um teste de flexão lateral pode ser substituído por cada um dos testes de raiz e face requeridos
AWS D1.1/D1.1M:2010 4. QUALIFICAÇÃO
141
Tabela 4.2
Qualificação WPS—Soldas em Chanfro CJP: Número e Tipo de Espécimes de Teste e
Faixa de Espessura e Diâmetro Qualificados (ver 4.5) (Dimensões em Milímetros)
1 Testes em PlacaJ b
Espessura (T)
Norninal de
Placa Testada,
mm
Número de Espécimes
Espessurac,d
Norninal de Placa,
Cano ou Tubo Qualificada, mm
Tensão de Seção
Reduzida (ver Fig
4 14)
Flexão de Raiz
(ver Fig
4 12)
Flexão de Face
(ver Fig
4 12)
Flexão Lateral
(ver Fig
4 13)
Mín Máx
3 ≤ T ≤ 10 2 2 2 (Note i) 3 2T
10 < T <25 2 - - 4 3 2T
25 e acima 2 - - 4 3 Ilimitado
2 Testes em Cano ou Tubulaçãoa,g
Tamanho ou
Diâmetro
Nominal de
Cano, mm
Espessura Nominal
de Parede, T mm
Número de Espécimes
Diâmetro Nominal de
Cano ou Tamanho de
Tubo Qualificados,
rrnn
Espessura c,d
Norninal de
Parede de Placa, Cano ou
Tubo Qualificada, mm
Tensão de
Seção Reduzida
(ver Fig 4 14)
Flexão de Raiz
(ver Fig
4 12)
Flexão de Face
(ver Fig
4 12)
Flexão Lateral
(ver Fig
4 13)
Mín Máx
Canos de
Teste Job
Size
<600
3T lO 2 2 2 (Note i
)
Diâmetro de teste e
acima
3 2T
10<T<20 2 - - 4
Diâmetro de teste e
acima
T/2 2T
T 20 2 - - 4
Diâmetro de teste e
acima
10 Ilimitado
600
3T lO 2 2 2 (Note i
)
Diâmetro de teste
e acima
3 2T
10<T<20 2 - - 4 600 e acima T/2 2T
T 20 2 - - 4 600 e acima 10 Ilimitado
Canos de
Teste
Padrão
50 mm OD x 6 mm WT
ou 75 mm OD x 6 mm WT
2 2 2 -
20 até
100
3 20
150 mm OD x 14 mm WT
ou 200 mm OD x 12mm WT
2 - - 4 100 e acima 5 Ilimitado
3 Testes em ESW e EGW a,h
Espessura
Nominal de
Placa Testada
Número de Espécimes
Espessura Nominal de Placa
Qualificada
Tensão de Seção
Reduzida
(ver Fig 4 14)
Tensão de Metal
Depositado (ver
Fig 4 18)
Flexão Lateral
(ver Fig
4 13)
Testes
CVN Mín Máx
T 2 I 4 (Note f
) 0 5T 1 1T
a
Todas as soldas de teste de placa, cano ou tubo devem ser inspecionadas visualmente (ver 4 9 1) e sujeitas a NDT (ver 4 9 2) Uma placa, cano ou tubo de
teste deve ser requerida para cada posição qualificada
b
Ver Figuras 4 10 e 4 11 para requisitos de teste de placa
c
Para soldas em chanfro quadrado que são qualificadas sem goivagem por trás, a espessura máxima qualificada deve ser limitada à espessura da placa de
teste
d
Qualificação de solda em chanfro CJP em qualquer espessura ou diâmetro deve qualificar qualquer tamanho de solda de filete ou em chanfro PJP para
qualquer espessura ou diâmetro (ver 4 11 3)
e
Qualificação com qualquer diâmetro de cano deve qualificar todas as larguras e profundidades d seção de caixa
f
Quando especificado, testes CVN devem estar em conformidade com a Cláusula 4, Parte D
g
Ver Tabela 4 1 para os detalhes de chanfro requeridos para qualificação de juntas de topo tubulares e de conexões em T-, Y-, K-
h
Ver Figura 4 9 para requisitos de placa
i
Para placa ou espessura de parede de 10 mm, um teste de flexão lateral pode ser substituído por cada um dos testes de flexão de raiz e de face requeridos
AWS D1.1/D1.1M:2010 4. QUALIFICAÇÃO
142
Tabela 4.3
Número e Tipo de Espécimes de Teste e Faixa de Espessura Qualificada -
Qualificação WPS; Soldas em Chanfro PJP (ver 4.11)
Profundidade de
Chanfro de Teste, T
in[mm]
Número de Espécimes a, b Faixas de Qualificação c, d
Análise
Macrográfica
para
Tamanho de
Solda (E)
4 11 2
4 11 3
4 11 4
Tensão de
Seção
Reduzida
(ver Fig
4 14)
Flexão de
Raiz
(ver Fig
4 12)
Flexão de
Face
(ver Fig
4 12)
Flexão
Lateral
(ver Fig
4 13)
Profundida
de do
Chanfro
Espessura Nominal de Placa, Cano ou
Placa de Tubulação, in [mm]
Mín Máx
1/8 ≤ T ≤ 3/8
[3 ≤ T ≤ 10]
3 2 2 2 - T 1/8 [3] 2T
3/8 < T ≤ 1
[10 < T ≤ 25]
3 2 - - 4 T 1/8 [3] Ilimitado
REQUISITOS BÁSICOS
a
Uma placa, cano ou tubulação de teste por posição deve ser requerida (ver Figura 4 10 ou 4.11 para placa de teste). Use o detalhe de
chanfro PJP de produção para qualificação. Todas as placas, canos ou tubulações devem ser visualmente inspecionados (ver 4.9.1).
b
Se um bisel PJP ou solda em chanfro em J- será usado para juntas em T-, ou bisel duplo ou solda em chanfro em duplo J será usado
para juntas de ângulo, a junta de topo deve ter uma placa restritiva temporária no plano da face quadrada para simular uma
configuração de junta em T-.
c
Requisitos de qualificação de diâmetro de cano Verthe da Tabela 4.2.
d
Qualquer qualificação PJP deve também qualificar qualquer tamanho de solda de filete em qualquer espessura.
Tabela 4.4
Número e Tipo de Espécimes de Teste e Faixa de Espessura Qualificada -
Qualificação WPS; Soldas de Filete (ver 4.12.1)
Espécie de
Teste
Tamanho de
Filete
Número
de Soldas
por WPS
Espécime de Teste Requerido b Tamanhos Qualificados
Análise
Macrográfica
4 11 1
4 8 4
Tensão de Metal
Consolidado
(ver
Figura 4 18)
Flexão Lateral
(ver Figura
4 13)
Espessura de
Placa/Cano Tamanho do
Filete
Teste T- de
Placa
(Figura 4 19)
Passe único,
tamanho
máximo a ser
usado em
construção
1 em cada
posição a ser
usada
3 faces - - Ilimitado
Passe único
máximo testado
e menor
Passe múltiplo,
tamanho
mínimo a ser
usado em
construção
1 em cada
posição a ser
usada
3 faces - - Ilimitado
Passe múltiplo
mínimo testado
e maior
Teste T- de
Cano c
(Figura 4 20)
Passe único,
tamanho
máximo a ser
usado em
construção
1 em cada
posição a ser
usada (ver
Tabela 4 1)
3 faces (exceto
para 4F & 5F,
4 faces
requeridas)
- - Ilimitado
Passe único
máximo testado
e menor
Passe múltiplo,
tamanho
mínimo a ser
usado em
construção
1 em cada
posição a ser
usada (ver
Tabela 4 1)
3 faces (exceto
para 4F & 5F,
4 faces
requeridas)
Ilimitado
Passe múltiplo
mínimo testado
e maior
Teste de
chanfro d
(Figura 4 23)
- 1 na posição
1G
- 1 2
Qualifica consumíveis de soldagem
a serem usados no teste T- acima
a
A espessura mínima qualificada deve ser 1/8 in [3 mm].
b
Todos os canos e placas de teste soldados devem ser visualmente inspecionados por 4.9.1.
c
Ver Tabela 4.2(2) para qualificação de diâmetro de cano.
d
Quando os consumíveis de soldagem usados não estão em conformidade com as provisões pré-qualificadas da Cláusula 3, e uma WPS
usando os consumíveis de soldagem propostos não foi estabelecida pelo Empreiteiro em conformidade com 4.10 ou 4.11.1, uma placa
de teste de solda em chanfro CJP groove deve ser soldada em conformidade com 4.9.
AWS D1.1/D1.1M:2010 4. QUALIFICAÇÃO
143
Tabela 4.5
Alterações em Variável Essencial de PQR que Requerem Requalificação WPS para
SMAW, SAW, GMAW, FCAW, e GTAW (ver 4.8.1)
Alterações de Variável Essencial no PQR que
Requerem Requalificação
Processo
SMAW SAW GMAW FCAW GTAW
Metal de Adição
1) Acréscimo na resistência de classificação do
metal de adição
X X X
2) Modificação de eletrodo SAW de baixo
hidrogênio para eletrodo SAW que não é de
baixo hidrogênio
X
3) Alteração de uma classificação de eletrodo ou
eletrodo-fluxo para outra classificação de
eletrodo ou eletrodo-fluxo•
X X X
4) Alteração para uma classificação de eletrodo ou
eletrodo-fluxo não abordada em:
AWS A5 1 ou
A5 5 da AWS
A5 17 ou A5 23 da
AWS
A5 18 ou A5 28 da
AWS
A5 20 ou A5 29
da AWS
A5 18 ou A5 28 da
AWS
5) Adição ou exclusão de metal de adição X
6) Modificação de alimentação de arame fria para
alimentação de arame quente ou vice-versa X
7) Acréscimo ou exclusão de metal de adição ou
arame granular ou em pó suplementar X
8) Acréscimo na quantidade de metal de adição ou
arame em pó ou granular suplementar X
9) Se o conteúdo de liga do metal de solda é
largamente dependente de metal de adição em
pó suplementar, qualquer modificação de WPS
que resulte em um depósito de solda com os
elementos de liga importantes que não atendem
aos requisitos de composição química da WPS
X
10) Modificação no diâmetro nominal do metal de
adição por:
Acréscimo de >
1/32 in [0,8
mm]
Qualquer acréscimo b Qualquer acréscimo
ou decréscimo
Qualquer
acréscimo
Acréscimo ou
decréscimo de > 1116
in [1,6mrn]
11) Modificação no número de eletrodos X X X X
12) Uma alteração na amperagem para cada
diâmetro usado por:
Para um valor
não recomendado
pelo fabricante
Acréscimo ou
decréscimo de > 10%
Acréscimo ou
decréscimo de >
10%
Acréscimo ou
decréscimo de >
10%
Acréscimo ou
decréscimo de > 25%
13) Uma modificação no tipo de corrente (ac ou dc)
ou polaridade (eletrodo positivo ou negativo para
a corrente)
X X X X X
14) Uma modificação no modo de transferência X
15) Uma modificação de saída CV para CC X X
16) Uma modificação na voltagem para cada
diâmetro usado por:
Acréscimo ou
decréscimo de > 7%
Acréscimo ou
decréscimo de >
7%
Acréscimo ou
decréscimo de >
7%
17) Um acréscimo ou decréscimo na velocidade de
alimentação de arame para cada diâmetro de
eletrodo (se não controlado por amperagem) por:
> 10% >10% >10%
AWS D1.1/D1.1M:2010 4. QUALIFICAÇÃO
144
Tabela 4.5 (Continuação)
Alterações em Variável Essencial de PQR que Requerem Requalificação WPS para
SMAW, SAW, GMAW, FCAW, e GTAW (ver 4.8.1)
Alterações de Variável Essencial no PQR que
Requerem Requalificação
Processo
SMAW SAW GMAW FCAW GTAW
Parâmetros de Processo
18) Uma alteração na velocidade de deslocamento
por:
Acréscimo ou
decréscimo
de > 15%
Acréscimo ou
decréscimo
de > 25%
Acréscimo ou
decréscimo
de > 25%
Acréscimo ou
decréscimo
de > 50%
19) Uma alteração no gás de proteção de um único
gás para outro gás único ou mistura de gases, ou
composição percentual nominal especificada de
mistura de gases ou para nenhum gás
X X X
20) Uma modificação na taxa total de fluxo de gás
por:
Acréscimo > 50%
Decréscimo > 20%
Acréscimo > 50%
Decréscimo > 20%
Acréscimo > 50%
Decréscimo > 20%
21) Uma modificação no gás de proteção não
abordada em:
A5 18 ou A5 28 da
AWS
A5 20 ou A5 29 da
AWS
Parâmetros SAW
22) Uma alteração de > 10%, ou 1/8 in [3 mm], o
que for maior, no espaçamento longitudinal dos
arcos
X
23) Uma alteração de > 10%, ou 1/8 in [3 mm], ou
que for maior, no espaçamento lateral dos arcos
X
24) Um acréscimo ou decréscimo de mais de 10° na
orientação angular de qualquer eletrodo paralelo
X
25) Para SAW mecanizada ou automática; um
acréscimo ou decréscimo de mais de 3° no
ângulo do eletrodo
X
26) Para SAW mecanizada ou automática; um
acréscimo ou decréscimo de mais de 5° normal à
direção de deslocamento X
Geral
27) Uma modificação na posição não qualificada
pela Tabela 4 1 X X X X X
28) Uma modificação em diâmetro, ou espessura, ou
ambos, não qualificada pela Tabela 4 2 X X X X X
29) Uma alteração no metal base ou combinação de
metais base não listados no PQR ou qualificados
pela Tabela 4 8
X X X X X
30) Soldagem Vertical: Para qualquer passe de
aclive para declive ou vice-versa X X X X
AWS D1.1/D1.1M:2010 4. QUALIFICAÇÃO
145
Tabela 4.5 (Continuação)
Alterações em Variável Essencial de PQR que Requerem Requalificação WPS para
SMAW, SAW, GMAW, FCAW, e GTAW (ver 4.8.1)
Alterações de Variável Essencial no PQR que
Requerem Requalificação
Processo
SMAW SAW GMAW FCAW GTAW
Geral
27) Uma modificação na posição não qualificada
pela Tabela 4 1 X X X X X
28) Uma modificação em diâmetro, ou espessura, ou
ambos, não qualificada pela Tabela 4 2 X X X X X
29) Uma alteração no metal base ou combinação de
metais base não listados no PQR ou qualificados
pela Tabela 4 8
X X X X X
30) Soldagem Vertical: Para qualquer passe de
aclive para declive ou vice-versa X X X X
31) Uma modificação no tipo de chanfro (por
exemplo, -V único para-V duplo), exceto
qualificação de qualquer solda em chanfro CJP
que qualifica para qualquer detalhe de chanfro
em conformidade com os requisitos de 3 12 ou
3 13
X X X X X
32) Uma modificação no tipo de chanfro para um
chanfro quadrado e vice-versa X X X X X
33) Uma alteração que exceda as tolerâncias de 3 12,
3 13 3 13 2 5 22 4 1 ou 5 22 4 2 envolvendo:
a) Um decréscimo no ângulo de chanfro
b) Um decréscimo na abertura de raiz
c) Um acréscimo na face da raiz
X X X X X
34) A omissão, mas não inclusão, de reforço ou
goivagem por trás X X X X X
35) Decréscimo de temperatura d de pré-
aquecimento por: >25°F [15o
C] >25°F [15o
C] > 25°F [15o
C] > 25°F [15oC] > 100ºF [55°C]
36) Decréscimo de temperatura d de interpasse por:
>25°F [15o
C] >25°F [15o
C] > 25°F [15o
C] > 25°F [15o
C] > 100ºF [55°C]
37) Adição ou exclusão de PWHT X X X X X
a
A resistência do metal de adição pode sofrer decréscimo sem requalificação WPS
b
Para WPSs usando fluxo de liga, qualquer acréscimo ou decréscimo no diâmetro do eletrodo deve requerer requalificação WPS
c
Faixas de velocidade de deslocamento para todos os lados de soldas de filete podem ser determinadas pelos testes de qualificação da maior solda de filete
de passe único ou menor solda de filete de passe múltiplo
d
A temperatura de pré-aquecimento ou interpasse de soldagem de produção pode ser menor que a temperatura de pré-aquecimento ou interpasse de PQR
contanto que as provisões de 5 6 sejam atendidas, e a temperatura do metal base não deve ser menor que a temperatura da WPS ao tempo da soldagem
subsequente
e
Eletrodos da mesma classificação AWS A5M (Unidades SI) podem ser usados em lugar da classificação de eletrodo da AWS A5 (Unidades
Convencionais dos EUA)
Observação: Um “x” indica aplicabilidade para o processo; um bloco sombreado indica não aplicabilidade
AWS D1.1/D1.1M:2010 4. QUALIFICAÇÃO
146
Tabela 4.6
Alterações Suplementares de Variável Essencial de PQR para Aplicações de
Teste CVN que Requerem Requalificação WPS para SMAW, SAW, GMAW,
FCAW, e GTAW
Variável SMAW SAW GMAW GMAW GTAW
Metal Base
1) Uma mudança no Número de Grupo X X X X X
2) A espessura mínima qualificada é T ou 5/8 in [16 mm], o que for
menor, exceto se T for menor que 1/4 in [6 mm], então a
espessura mínima qualificada é 1/8 in [3 mm]
X X X X X
Metal de Adição
2) Uma modificação na Classificação AS X da AWS, ou na
classificação de um metal de solda ou metal de adição não
abordada por especificações AS X
X X X X X
4) Uma alteração em classificação de Fluxo/Arame, ou uma
mudança no nome de marca do eletrodo ou fluxo quando não
classificada por uma especificação AWS, ou para escória
prensada
X
5) Uma alteração no fabricante, ou no nome da marca do
fabricante ou no tipo de eletrodo
X
Posição
6) Uma mudança na posição para vertical acima Um teste 3G
vertical acima qualifica para todas as posições e vertical abaixo
X X X X
Temperatura de Pré-aquecimento/lnterpasse
7) Um acréscimo de mais de 100°F [56°C] na temperatura máxima
de pré-aquecimento ou interpasse qualificada
X X X X X
Tratamento Térmico Pós-Solda
8) Uma alteração na temperatura PWHT e/ou faixas de tempo O
teste PQR deve estar sujeito a temperatura(s) por 80% do tempo
agregado O tempo total PWHT a temperatura(s) precisa ser
aplicado em um ciclo de aquecimento
X X X X X
Características Elétricas
9) Um acréscimo no aporte de calor ou volume de metal de solda
depositado por unidade de comprimento de solda acima do
qualificado, exceto quando um tratamento térmico de
austenitização de refino de grão é aplicado após a soldagem O
acréscimo pode ser medido por qualquer dos seguintes:
a) ( )
( )
b) Volume de Metal de Solda - Um aumento no tamanho do passe,
ou uma diminuição no comprimento do passe de solda por
unidade de comprimento do eletrodo
X X X X X
Outras Variáveis
10) Na posição vertical, uma alteração de cinta para malha X X X X X
11) Uma modificação de passe múltiplo por lado para passe único
por lado
X X X X X
12) Uma alteração excedendo ±20% nas variáveis de oscilação para
soldagem mecanizada ou automática
X X X X
AWS D1.1/D1.1M:2010 4. QUALIFICAÇÃO
147
Tabela 4.7
Alterações de Variável Essencial de PQR que Requerem Requalificação de WPS
para ESW ou EGW
(ver 4.8.2)
Alterações de Variável Essencial no PQR que Requerem Requalificação
Requalificação por Teste
WPS
Requalificação por RT ou UTa
Metal de Adição
1) Uma alteração "significante" no metal de adição ou na composição do metal
guia consumível
X
Sapatas de Moldagem (fixas ou móveis)
2) Uma modificação de metálico para não metálico ou vice-versa X
3) Uma modificação de fusão para não fusão ou vice-versa X
4) Uma redução em qualquer dimensão ou área de seção transversal de uma
sapata sólida de não fusão > 25%
X
5) Uma alteração no projeto de sólido de não fusão para resfriado por água ou
vice-versa
X
Oscilação de Metal de Adição
6) Uma alteração na oscilação de velocidade transversal > 10 ipm (4 mm/s) X
7) Uma alteração na oscilação transversal do tempo de contato > 2 segundos
(exceto conforme necessário para compensar as variações de abertura de
junta)
X
8) Uma modificação na oscilação de comprimento transversal que afeta em
mais que 1/8 in
[3 mm], a proximidade do metal de adição às sapatas de moldagem
X
Suplementos de Metal de Adição
9) Uma alteração na área de seção transversal principal do metal guia
consumível > 30%
X
10) Uma modificação no sistema de fluxo, isto é , eletrodo magnético , tubular,
externo, etc
X
11) Uma modificação na composição de fluxo inclusive revestimento guia
consumível
X
12) Uma alteração na sobrecarga do fluxo > 30% X
Diâmetro do Eletrodo/ Metal de Adição
13) Acréscimo ou decréscimo no diâmetro do eletrodo > 1/32 in [1 mm] X
14) Uma alteração no número de eletrodos usados X
Amperagem do Eletrodo
15) Um acréscimo ou decréscimo na amperagem > 20% X
16) Uma modificação no tipo de corrente (acorde) ou polaridade X
Voltagem Arco Eletrodo
17) Um acréscimo ou decréscimo na voltagem > 10% X
Características do Processo
18) Uma modificação para uma combinação com qualquer outro processo de
soldagem
X
19) uma alteração de passe único para passe múltiplo e vice versa X
(Continua)
AWS D1.1/D1.1M:2010 4. QUALIFICAÇÃO
148
Tabela 4.7 (Continuação)
Alterações de Variável Essencial de PQR que Requerem Requalificação de WPS
para ESW ou EGW (ver 4.8.2)
Alterações de Variável Essencial no PQR que Requerem
Requalificação
Requalificação por Teste WPS Requalificação por RT ou UTa
20) Uma modificação de corrente constante para voltagem
constante e vice versa
X
Velocidade de Alimentação do Arame
21) Um acréscimo ou decréscimo na velocidade de alimentação
do arame > 40%
X
Velocidade de Deslocamento
22) Um acréscimo ou decréscimo na velocidade de deslocamento
(se não uma função automática de comprimento de arco ou
taxa de deposição)> 20% (exceto conforme necessário para
compensar variação na abertura da junta)
X
23) Uma modificação na composição do gás de proteção de
qualquer constituinte > 5% do fluxo total
X
24) Um acréscimo ou decréscimo na taxa total de fluxo de
proteção> 25%
X
Posição de Soldagem
25) Uma alteração na posição vertical de > 10° X
Tipo de Chanfro
26) Um acréscimo na área de seção transversal (para chanfros
não quadrados)
X
27) Um decréscimo na área de seção transversal (para chanfros
não quadrados)
X
28) Uma alteração na espessura de junta, T, do PQR, fora dos
limites de 0 5T-l lT
X
29) Um acréscimo ou decréscimo de > 1/4 ín [6 mm] na abertura
de raiz do chanfro quadrado
X
Tratamento Térmico Pós-Solda
30) Uma alteração em PWHT X
a
O teste deve ser realizado em conformidade com a Cláusula 6, Partes E ou F, conforme aplicável
Note: Um “x” indica aplicabilidade para o método de requalificação; um bloco sombreado indica não aplicabilidade
Tabela 4.8
Tabela 3.1, Tabela 4.9, e Aços Não Listados Qualificados por PQR (ver 4.8.3)
Metal Base PQR Grupo de Combinações de Grupo de Metal Base WPS Permitido por PQR
Qualquer Aço Grupo I para Qualquer Aço Grupo I Qualquer Aço Grupo I para Qualquer Aço Grupo I
Qualquer Aço Grupo II para Qualquer Aço Grupo II Qualquer Aço Grupo I para Qualquer Aço Grupo I
Qualquer Aço Grupo II para Qualquer Aço Grupo I
Qualquer Aço Grupo Ii para Qualquer Aço Grupo II
Qualquer Aço Específico do Grupo III ou Tabela 4 9 para Qualquer
Aço do Grupo I
O Aço Específico do Grupo III ou Tabela 4 9 do PQR Testado para Qualquer Aço de
Grupo I
Qualquer Aço Específico do Grupo III ou Tabela 4 9 para Qualquer
Aço do Grupo II
O Aço Específico do Grupo III ou Tabela 4 9 do PQR Testado para Qualquer Aço de
Grupo I ou Grupo II
Qualquer Aço do Grupo III para o Mesmo ou Qualquer Outro Aço do
Grupo III
ou
Qualquer Aço do Grupo IV para o Mesmo ou Qualquer Outro Aço do
Grupo IV
ou
Qualquer Aço da Tabela 4 9 para o Mesmo ou Qualquer Outro Aço da
Tabela 4 9
Aços devem ser da mesma especificação material, grau/tipo e limite de escoamento
mínimo como os Aços listados no PQR
Qualquer Combinação de Aços do Grupo III, IV, e da Tabela 4 9 Apenas a Combinação Específica de Aços listada no PQR
Qualquer Aço Não Listado para Qualquer Aço Não Listado ou
Qualquer Aço Listado na Tabela 3 1 ou Tabela 4 9
Apenas a Combinação Específica de Aços listada no PQR
Notas:
1 Grupos I a IV são encontrados na Tabela 3 1
2 Quando permitido pela especificação do aço, o limite de escoamento pode ser reduzido com espessura de metal aumentada
Tabela 4.9
Base e Metais de Adição Aprovados pelo Código que Requerem Qualificação pela Cláusula 4
Base Metal Metal de Adição de Resistência Correspondente
Espessura do Metal Base, T
Temperatura Mínima de Pré-
aquecimento e Interpasse
Especificação
Limite de
escoamento/Escoamento
Mínimo
Faixa de Tensão
Processo
Especificação
de Eletrodo da
AWS
Classificação de Eletrodo
ksi MPa ksi MPa in mm ºF ºC
ASTM A 871 Graus 60, 65 60
65
415
450
75 min
80 min
520 min
550 min
SMAW
SAW
GMAW
FCAW
A5 5
A5 23
A5 28
A5 29
E8015-X, E8016 X, E8018 X
F8XX-EXXX-XX,
F8XX-ECXXX-XX
ER80S-XXX, E80C-XXX
E8XTX X, E8XTX-XC,
E8XTX-XM
Até ¾
Acima de ¾
até 1-1/2
Acima de 1-1/2
até 2-1/2
Acima de 2-1/2
Até 20
Acima de
20
até 38
Acima de
38
até 65
Acima de
65
50
125
175
225
10
50
80
110
ASTM A 514 (Acima de 2-1/2 in
[65 mm])
ASTM A 709 Graus 100,
100W (Acima de 2-1/2 in to
4 in [65 to 100 mm])
ASTM A 710 Grau A. Oass 1
3/4 in [20 mm]
ASTM A 710 Grau A. Oass 3
2 in [50 mm]
90
90
80-85
75-80
620
620
550-585
515-550
100-130
100-130
90 min
85 min
690-895
690-895
620 min
585 min
SMAW
SAW
GMAW
FCAW
A5 5
A5 23
A5 28
A5 29
E10015-X, E10016 X,
E10018 X, E10018M
F10XX-EXXX-XX, F10XX ECXXX XX
ER100S-XXX, E100C-XXX
E10XTX-XC, E10XTX-XM
ASTM A 514 (2 1/2 in
[65 mm] e abaixo)
ASTM A 517
ASTM A 709 Graus 100,
100W (2 1/2in [65 mm] e abaixo)
100
90-100
100
690
620-690
690
110-130
105-135
110-130
760-895
725-930
760-895
SMAW
SAW
GMAW
FCAW
A5 5
A5 23
A5 28
A5 29
E11015-X, E11016 X,
E11018 X, E11018M
F11XX-EXXX-XX,
F11XX-ECXXX-XX
ER110S-XXX, E110C-XXX
E11XTX-XC, E11XTX-XM
(Continua)
4.
QUALIFICAÇÃO
AWS
D1.1/D1.1M:2010
Tabela 4.9 (Continuação)
Metais Base e Metais de Adição Aprovados pelo Código que Requerem Qualificação pela Cláusula 4
Base Metal Metal de Adição de Resistência Correspondente
Espessura de Metal Base, T
Temperatura Mínima
de Pré-aquecimento e
Interpasse
Especificação
Limite de escoamento/Escoamento Mínimo Faixa de Tensão
Processo
Especificação de
Eletrodo AWS Classificação de Eletrodo
ksi MPa ksi MPa in mm ºF ºC
ASTM A 1043/A
1043M
Graus 36, 50
36–52
50–65
250–360
345–450
58 min
65 min
58 min
65 min
SMAW
SAW
GMAW
FCAW
A5 10
A5 50
A5 17
A5 23
A5 18
A5 28
A5 20
A5 29
E7015, E7016, E7018, E7028
E7015-X, E7016-X, E7018-X
F7XX-EXXX, F7XX-ECXXX
F7XX-EXXX-XX,
F7XX-ECXXX-XX
ER70S-X, E70C-XC,
E70C-XM (Eletrodos com o sufixo -GS devem
ser excluídos)
ER70S-XXX, E70C-XXX
E7XT-X, E7XT-XC, E7XT-XM
(Eletrodos com os sufixos -2C, -2M,
-3, -10, -13, -14, e -GS devem ser
excluídos, e eletrodos com o sufixo -11
devem ser excluídos para espessuras
maiores que 1/2 in [12 mm])
E7XTX-X, E7XTX-XC,
E7XTX-XM
Até ¾
Acima de ¾
até 1-1/2
Acima de 1-1/2
até 2-1/2
Acima de 2-1/2
Até 20
Acima de 20
até 38
Acima de 38
até 65
Acima de 65
50
125
175
225
10
50
80
110
Notas:
1 Quando soldas devem sofrer alívio de tensão, o metal de solda depositado não deve exceder 0,05% de vanádio (ver 5 8)
2 Quando requerido por contrato ou especificações de trabalho, metal de solda depositado deve ter um mínimo de energia CVN de 20 pés libras [27,1 J] a 0°F [20°C] como determinado ao usar o teste CVN em conformidade com a
Cláusula 4, Parte D
3 Para A 514, A 517, e A 709 ASTM , Graus 100 e 100W, a temperatura máxima de pré-aquecimento e interpasse não deve exceder 400°F [200°C] para espessuras até 1-1/2 in [38 mm], inclusive, e 450°F [230°C] para espessuras
maiores
4 As propriedades de metal de adição foram movidas para o informativo Anexo V
5 AWS A5M (Unidades SI) eletrodos de mesma classificação podem ser usados em lugar da classificação de eletrodo AWS A5 (Unidades Convencionais dos EUA)
AWS
D1.1/D1.1M:2010
4.
QUALIFICAÇÃO
Tabela 4.10
Qualificação de Soldador e Operador de Soldagem—Posições de Soldagem de Produção Qualificadas por Testes
de Placa, Cano e Tubo de Caixa
(ver 4.19.1)j
Teste de Qualificação
Soldagem de Produção de Placa
Qualificada
Soldagem de Produção de Cano Qualificada Soldagem de Produção de Tubo de Caixa Qualificada
Tipo de
Teste
Posições'
Chanfro
CJP
Chanfro
PJP
Filete
Junta de Topo
Conexões em T, Y-,
K-
Filete
Junta de Topo Conexões em T-,Y-, K-
Filete
CJP PJP CJP PJP CJP PJP CJP PJP
p
L
A
T
E
Chanfrob
lG
2G
3G
4G
3G+4G
F
F, H
F,H,V
F, OH
Todos
F
F,H
F,H,V
F,OH
Todos
(F, H)h
(F, H)h
(F, H, V)h
(F, H,OH)h
Todos h
Fc
(F, H)c
(F, H, V)c
(F, OH)c
Todos c
Fc
(F,H)c
(F,H,V)c
(F, H)c
Todos c
F c,e
(F, H)c,e
(F,H, V)c,e
(F,OH) c,e
Todos c,e
(F, H)h
(F, H)h
(F,H, V)h
(F,H,OH)h
Todos h
Fd
(F, H)d
(F, H, V)d
(F, OH)d
Todos d
F
F,H
F,H,V
F,OH
Todos
Fe
(F, H)e
(F,H, V)e
(F, OH)e
Todos e
(F, H)h
(F, H)h
(F, H, V)h
(F, H, OH)h
Todos h
Filete
lF
2F
3F
4F
3F+4F
Fh
(F, H)h
(F, H, V)
(F, H,OH)h
Todos h
Fh
(F, H)h
(F, H, V)h
(F,H, OH)h
Todos h
Fh
(F, H)h
(F, H, V)h
(F, H, OH)h
Todos h
Tampão
Qualifica Soldagem de Tampão (Plug e Slot) Apenas para as Posições Testadas
T
U
B
U
L
A
R
Chanfro
(Cano ou
Caixa)
lG
Rotacionado'
2G'
5G'
6G'
(2G+ 5G)i
F
F,H
F,V,OH
Todos
Todos
F
F,H
F,V,OH
Todos
Todos
(F, H)h
(F, H)h
(F,V,OH)h
Todos h
Todos
Ff
(F, H)f
(F, V,OH)f
Todos f
Todos f
Ff
(F, H)f
F,V,OH)f
Todos f
Todos f
F e,f
(F, H)e f
(F,V,OH)e,f
Todos e,f
Todos e,f
(F, H)h
(F, H)h
(F,V,OH)h
Todos h
Todos
F
F,H
F,V,OH
Todos
Todos
F
F,H
F,V,OH
Todos
Todos
F e
(F, H)e
(F,V,OH)e
Todos e
Todos e
(F, H)h
(F, H)h
(F,V,OH)h
Todos h
Todos
6GR
(Fig 4 27)
Todos Todos Todos h Todos d,f Todos i
Todos
e,f
Todos ,e,f Todos h
Todos d Todos
Todos e Todos h
6GR
(Fig 4 27
&4 29)
Todos Todos Todos h Todos d,f Todos f
Todos
e,f
Todos e,f Todos h
Todos d Todos
Todos
e,g
Todos c Todos h
Filete de
Cano
lF
Rotacionado
2F
2F
Rotacionado
4F
5F
Fh
(F, H)h
(F, H)h
(F, H,OH)h
Todos h
Fh
(F, H)h
(F, H)h
(F, H, OH)h
Todos h
Fh
(F, H)h
(F, H)h
(F, H, OH)h
Todos h
CJP – Penetração Completa de Junta; PJP- Penetração Parcial de Junta
a
Ver Figuras 4.3, 4.4, 4.5, e 4.6.
b
A qualificação de solda em chanfro deve também qualificar soldas de tampão para as posições de teste indicadas.
c
Apenas qualificado para cano igual ou maior que 24 in [600 mm] em diâmetro com reforço, goivagem por trás ou ambos.
d
Não qualificado para juntas soldadas a partir de um lado sem reforço, ou soldadas a partir de dois lados sem goivagem por trás.
e
Não qualificado para soldas que têm ângulos de chanfro menores que 30° (ver 4.12.4.2).
f
Qualificação usando tubulação de caixa (Figura 4.27) também qualifica canos de soldagem com mais de 24 in [600 mm] de diâmetro.
g
Cano ou tubulação de caixa é requerido para a qualificação 6GR (Figura 4.27). Se tubulação de caixa é usado pela Figura 4.27, o ensaio macrográfico pode ser realizado nos cantos do espécime de teste (similar à Figura 4.29).
h
Ver 4.25 e 4.28 para restrições de ângulo diedro para juntas de placa e conexões tubulares em T-, Y-, K-.
I
Qualificação para juntas de produção de soldagem sem reforço ou goivagem por trás devem requerer o uso do detalhe de junta da Figura 4.24(A). Para juntas de produção de soldagem com reforço ou goivagem por trás, a Figura 4.24(A) ou a Figura 4.24(B) podem ser usadas para qualificação.
J
A qualificação de operadores de soldagem para soldagem por eletroescória (ESW) ou soldagem eletrogás (EGW) deve apenas aplicar-se à posição testada.
4.
QUALIFICAÇÃO
AWS
D1.1/D1.1M:2010
AWS D1.1/D1.1M:2010 4. QUALIFICAÇÃO
152
Tabela 4.11
Qualificação de Soldador e Operador de Soldagem—Número e Tipo de Espécimes e
Faixa de Espessura e Diâmetro Qualificados (Dimensões em Polegadas) (ver 4.19.2.1)
(I) Teste em Placa Número de Espécimesa
Dimensões Qualificadas
Soldas em Chanfro ou de Tampão (Plug) de Produção
Flexãob
de
Face (Fig
4 12)
Flexãob
de
Raiz (Fig
4 12)
Flexãob
Lateral
(Fig
4 13)
Análise
Macrográf
ica
Espessura Nominal de Placa, Cano ou
Tubo Qualificada, in
Tipo de Solda de Teste
(Figuras Aplicáveis)
Espessura Nominal
de Placa de Teste (T)
in
Mín Máx
Chanfro (Fig 4 31 ou 4 32) 3/8 1 1 (Nota c) - 1/8 3/4 maxd
Chanfro (Fig 4 21 4 22 ou 4 30) 3/8 < T <1 - - 2 - 1/8 2T rnaxd
Chanfro (Fig 4 21 , 4 22 ou 4 30) 1 ou acima - - 2 - 1/8 Ilimitadod
Tampão (Fig 4 38) 3/8 - - - 2 1/8 Ilimitado
Soldas de Filete de Produção
(Junta em T- e Oblíqua)
Número de Espécimesa
Dimensões Qualificadas
Tipo de Solda de Teste
(Figuras Aplicáveis)
Espessura Nominal
da Placa de Teste, T,
in
Rupturade
Solda de
Filete
Análise
Macrográfic
a
Flexãob
Lateral
Flexãob
de Raiz
Flexãob
de Face
Espessura Norninal de
Placa Qualificada, in
Ângulos Diedros
Qualificadosh
Mín Máx Mín Máx
Chanfro (Fig 4 31 ou 4 32) 3/8 - - (Nota c) 1 1 1/8 Ilimitado 30° Ilimitado
Chanfro (Fig 4 31 ou 4 32) 3/8< T<1 - - 2 - - 1/8 Ilimitado 30° Ilimitado
Chanfro (Fig 4 21 , 4 22 ou 4 30) 1 - - 2 - - 1/8 Ilimitado 30° Ilimitado
Opção Filete 1 (Fig 4 37) 1/2 1 1 - - - 1/8 Ilimitado 60° 135º
Opção Filete 2 (Fig 4 33) 3/8 - - - 2 - 1/8 Ilimitado 60° 135º
Opção Filete 3 (Fig 4 20)
[Qualquer diâmetro de cano]
> 1/8 - 1 - - - 1/8 Ilimitado 30° Ilimitado
(2) Testes em Cano ou Tubulaçãof
Número de Espécimesa
Tamanho Nominal de
Cano ou Tubo
Qualificado, in
Espessurad
Nominal de
Parede de Placa, Cano ou
Tubo Qualificada, in
Juntas de Topo em Chanfro CJP de Produção
Somente Posições
1G e 2G
Somente Posições
5G 6G e 6GR
Tipo de Solda de Teste
Tamanho
Nominal de
Cano de
Teste, in
EspessuraNo
minal de
Teste, in
Flexão
b
de
Face
Flexão
b
de Raiz
Flexãob
Lateral
Flexãob
de Face
Flexãob
de Raiz
Flexãob
Lateral
Mín Máx Mín Máx
Chanfro 4 Ilimitado 1 1 (Nota c) 2 2 (Nota c) 3/4 4 1/8 3/4
Chanfro >4 3/8 1 1 (Nota c) 2 2 (Nota c) (Nota e) Ilimitado 1/8 3/4
Chanfro >4 > 3/8 - - 2 - - 4 (Nota e) Ilimitado 3/16 Ilimitado
(Continua)
AWS D1.1/D1.1M:2010 4. QUALIFICAÇÃO
153
Tabela 4.11 (Continuação)
Qualificação de Soldador e Operador de Soldagem—Número e Tipo de Espécimes e
Faixa de Espessura e Diâmetro Qualificados (Dimensões em Polegadas) (ver 4.19.2.1)
(2) Teste em Cano ou Tubulaçãof (Cont )
Número de Espécimesa
Dimensões Qualificadas
Soldas em Chanfro CJP de Produção em
Conexões em T-, Y-, ou K-
Tamanho Nominal de Cano ou
Tubo Qualificado, in
Espessurac Nominal de
Parede ou Placa Qualificada,
in
Ângulos Diedros
Qualificadosg
Tipo de Solda de
Teste
Tamanho
Nominal do
Cano de
Teste, in
Espessura
Nominal de
Teste, in
Flexão
Lateralb
Análise
Macrográ
fica
Mín Máx Mín Máx Mín Máx
Chanfro em Cano
(Fig 4 27)
≥ 6 O D ≥ /2 4 4 Ilimitado 3/16 Ilimitado 30° Ilimitado
Chanfro em Cano
(Fig 4 28)
< 4 O D ≥ , 2 3 Nota i - 3/4 < 4 1/8 Ilimitado 30° Ilimitado
Chanfro em Caixa
(Fig 4 29)
Ilimitado ≥ /2 4 4
Ilimitado
(Somente
caixa)
Ilimitado
(Somente
caixa)
3/16 Ilimitado 30° Ilimitado
Soldas de Filete de Produção em Conexões
em T-, Y-, ou K-
Número de Espécimesa Dimensões Qualificadas
Tipo de Solda de
Teste
TamanhoNo
minal de
Cano
deTeste, D
Espessura
Nominal de
Teste, in
Ruptura
de Solda
de Filete
Análise
Macrográ
fica
Flexão de
Raizb
Flexão de
Faceb
Tamanho Nominal de
Cano ou Tubo
Qualificado, in
Espessura Nominal de Parede
ou Placa Qualificada
Ângulos Diedros
Qualificadosg
Mín Máx Mín Máx Mín Máx
Posição 5G
(Chanfro)
Ilimitado ≥ /8 - -
2
(Nota c)
2
(Nota c)
(Nota e) Ilimitado
1/8
(Nota d)
Ilimitado
(Nota d)
30° Ilimitado
Opção 1- Filete
(Fig 4 37)g
- ≥ /2 I I - - 24 Ilimitado 1/8 Ilimitado 60° Ilimitado
Opção 2- Filete
(Fig 4 33)g
- 3/8 - - 2 - 24 Ilimitado 1/8 Ilimitado 60° Ilimitado
Opção 3- Filete
(Fig 4 20)
Ilimitado ≥ /8 - I - - D Ilimitado 1/8 Ilimitado 30° Ilimitado
(3) Testes em Soldagem por Eletroescória e Eletrogás
Soldas em Chanfro de Produção de Placa Número de Espécimesa Espessura Nominal de Placa Qualificada, in
Tipo de Solda de Teste
Espessura Nominal de Placa
Testada, T, in
Flexão Lateralb
(ver Fig 4 13)
Mín Máx
Chanfro (Fig 4 36)
< 1-1/2 2 1/8 T
1-1/2 2 1/8 Ilimitado
a
Todas as soldas devem ser inspecionadas visualmente (ver 4 31 1) Um cano, placa ou tubulação de teste deve ser requerido para cada posição testada, a menos que
observado de outra forma
b
Exame radiográfico da placa, cano ou tubulação de teste pode ser realizado em lugar dos testes de flexão (ver 4 20 1 1)
c
Para placa ou espessura de parede de 3/8 in, um teste de flexão lateral pode ser substituído por cada um dos testes de flexão de raiz e face requeridos
d
Também qualifica para soldagem de qualquer tamanho de solda de filete ou PJP em qualquer espessura de placa, cano ou tubulação
e
O tamanho mínimo qualificado de cano deve ser l/2 do diâmetro de teste ou 4 in, o que for maior
f
Ver Tabela 4 10 para detalhes de chanfro apropriados
g
Duas p1acas requeridas, cada uma sujeita aos requisitos de espécime de teste descritos Uma p1aca deve ser soldada na posição 3F e as outras na posição 4F
h
Para ângulos diedro < 30°, ver 4 27 1
i Duas flexões de raiz e duas flexões de face
AWS D1.1/D1.1M:2010 4. QUALIFICAÇÃO
154
Tabela 4.11 (Continuação)
Qualificação de Soldador e Operador de Soldagem—Número e Tipo de Espécimes e
Faixa de Espessura e Diâmetro Qualificados (Dimensões em Polegadas) (ver 4.19.2.1)
(I) Teste na Placa Número de Espécimesa
Dimensões Qualificadas
Soldas em Chanfro de Tampão (Plug) de Produção
Flexão de
Faceb
(Fig
4 12)
Flexão de
Raizb
(Fig
4 12)
Flexão
Lateralb
(Fig
4 13)
Análise
Macrográ
fica
Espessura Nominal de Placa,
Cano ou Tubo Qualificada mm
Tipo de Solda de Teste
(Figuras Aplicáveis)
Espessura
Nominal de
Placa de
Teste, T, mm
Mín Máx
Chanfro (Fig 4 31 ou 4 32) 10 1 1 (Nota c) - 3 20 maxd
Chanfro (Fig 4 21 4 22 ou
4 30)
10<T<25 - - 2 - 3 2T maxd
Chanfro (Fig 4 21 4 22 ou
4 30)
25 ou over - - 2 - 3 Ilimitadod
P1ug (Fig 4 38) 10 - - - 2 3 Ilimitado
Soldas de Filete de Produção
(junta em T- e Oblíqua) Número de Espécimesa
Dimensões Qualificadas
Ângulos Diedros
Qualificadosh
Tipo de Solda de Teste
(Figuras Aplicáveis)
Espessura
Nominal de
Placa de
Teste, T, mm
Ruptura de
Solda de Filete
Análise
Macrográ
fica
Flexãob
Lateral
Flexãob
de Raiz
Flexãob
de Face
Espessura Norninal de Placa
Qualificada, nnn
Mín Máx Mín Máx
Chanfro (Fig 4 31 ou 4 32) 10 - -
(Nota
c)
1 1 3 Ilimitado 30° Ilimitado
Chanfro (Fig 4 31 ou 4 32) 10<T<25 - - 2 - - 3 Ilimitado 30° Ilimitado
Chanfro (Fig 4 21 4 22 ou
4 30)
25 - - 2 - - 3 Ilimitado 30° Ilimitado
Opção Filete 1 (Fig 4 37) 12 1 1 - - - 3 Ilimitado 60° 135°
Opção Filete 2 (Fig 4 33) 10 - - - 2 - 3 Ilimitado 60° 135°
Opção Filete 3 (Fig 4 20) [Qualquer
diâmetro de cano]
>3 - 1 - - - 3 Ilimitado 30° Ilimitado
(2) Testes em Cano ou Tubulaçãoe
Número de Espécimesa
Tamanho Nominal de
Cano ou Tubo
Qualificado, mm
Espessurad
Nominal de
Parede de Placa, Cano
ou Tubo Qualificada,
mm
Chanfro CJP e Juntas de Topo de Produção
Somente Posições
1G e 2G
Somente Posições
5G 6G e 6GR
Tipo de Solda
deTeste
Tamanho
Nominal de
Cano de Teste,
mm
Espessura
Nominal
deTeste, mm
Flexãob
de Face
Flexãob
de Raiz
Flexãob
Lateral
Flexãob
de Face
Flexãob
de Raiz
Flexãob
Lateral
Mín Máx Mín Máx
Chanfro ≤ Ilimitado 1 1 (Nota c) 2 2 (Nota c) 20 100 3 20
Chanfro > 100 ≤ 1 1 (Nota c) 2 2 (Nota c) (Nota e) Ilimitado 3 20
Chanfro > 100 >10 - - 2 - - 4 (Nota e) Ilimitado 5 Ilimitado
(Continua)
AWS D1.1/D1.1M:2010 4. QUALIFICAÇÃO
155
Tabela 4.11 (Continuação)
Qualificação de Soldador e Operador de Soldagem—Número e Tipo de Espécimes e Faixa
de Espessura e Diâmetro Qualificados (Dimensões em Polegadas) (ver 4.19.2.1)
(2) Teste em Cano ou Tubulaçãof
(Continuação)
Soldas em Chanfro CJP de Produção em
Conexões em T-, Y-, ou K-
Número de Espécimesa
Dimensões Qualificadas
Tamanho Nominal de Cano ou
Tubo Qualificado, mm
Espessurad Nominal de
Parede ou Placa
Qualificada, mm
Ângulos Diedros
Qualificadosh
Tipo de Solda de
Teste
Tamanho
Nominal de
Cano de Teste,
mm
Espessura
Nominal
de Teste,
mm
Flexãob
Lateral
Análise
Macrográfic
a Mín Máx Mín Máx Mín Máx
Chanfro em Cano
(Fig 4 27)
≥ 5 O D ≥ 2 4 - 100 Ilimitado 5 Ilimitado 30º Ilimitado
Chanfro em Cano
(Fig 4 28)
< 100 O D ≥ 5 Nota i - 20 < 100 3 Ilimitado 30º Ilimitado
Chanfro em
Caixa
(Fig 4 29)
Ilimitado ≥ 2 4 4
Ilimitado
(Apenas caixa)
Ilimitado
(Apenas
caixa)
5 Ilimitado 30º Ilimitado
Soldas de Filete de Produção em Conexões em T-,
Y-, ou K- Número de Espécimesa Dimensões Qualificadas
Tipo de Solda
de Teste
Tamanho
Nominal
de Cano de
Teste,
D
Espessura
Nominal de
Teste,
mm
Ruptura
de Solda
de Filete
Análise
Macrográ
fica
Flexãob
de Raiz
Flexãob
de Face
Espessura Nominal de
Placa Qualificada, nnn
Espessura Nominal de
Parede ou Placa
Qualificada, mm
Ângulos Diedros
Qualificadosh
Mín Máx Mín Máx Mín Máx
Posição 5G
(Chanfro )
Ilimitado ≥ 3 -- -
2
(Nota c)
2
(Nota c)
(Nota e) Ilimitado
3
(Nota d)
Ilimitado
(Nota d)
30° Ilimitado
Opção 1 -
Filete (Fig
4 37)g
- ≥ 2 1 - - - 600 Ilimitado 3 Ilimitado 30° Ilimitado
Opção 2 -
Filete (Fig
4 33)g
- 10 - - 2 - 600 Ilimitado 3 Ilimitado 30° Ilimitado
Opção 3 -
Filete (Fig
4 20)
Ilimitado ≥ 3 - 1 - - D Ilimitado 3 Ilimitado 60° Ilimitado
(3) Testes em Soldagem por Eletroescória e Eletrogás
Soldas em Chanfro de Produção de Placa Número de Espécimesa Espessura Nominal de Placa Qualificada, in
Tipo de Solda de Teste
Espessura Nominal de Placa
Testada, T, in
Flexãob Lateral
(ver Fig 4 13)
Mín Máx
Chanfro (Fig 4 36)
< 38 2 3 T
38 2 3 Ilimitado
a
Todas as soldas devem ser inspecionadas visualmente (ver 4 31 1) Um cano, placa ou tubulação de teste deve ser requerido para cada posição testada, a menos que observado
de outra forma
b
Exame radiográfico da placa, cano ou tubulação de teste pode ser realizado em lugar dos testes de flexão (ver 4 20 1 1)
c
Para placa ou espessura de parede de 3/8 in, um teste de flexão lateral pode ser substituído por cada um dos testes de flexão de raiz e face requeridos
d
Também qualifica para soldagem de qualquer tamanho de solda de filete ou PJP em qualquer espessura de placa, cano ou tubulação
e
O tamanho mínimo qualificado de cano deve ser l/2 do diâmetro de teste ou 4 in, o que for maior
f
Ver Tabela 4 10 para detalhes de chanfro apropriados
g
Duas p1acas requeridas, cada uma sujeita aos requisitos de espécime de teste descritos Uma p1aca deve ser soldada na posição 3F e as outras na posição 4F
h
Para ângulos diedro < 30°, ver 4 27 1
i
Duas flexões de raiz e duas flexões de face
AWS D1.1/D1.1M:2010 4. QUALIFICAÇÃO
156
Tabela 4.12
Alteração em Variável Essencial de Desempenho de Equipe de Soldagem que Requer
Requalificação (ver 4.23)
Alterações de Variável Essencial em WPQR que Requerem Requalificação
Equipe de Soldagem
Soldadoresb Operadores de
Soldagem b,c
Soldadores
Ponteadores
(1) Para um processo não qualificado (GMAW-S é considerado um processo separado) X X X
(2) Para um eletrodo SMAW com um número F- (ver Tabela 4 13) mais alto que o número F- do eletrodo WPQR X X
(3) Para uma posição não qualificada X X X
(4) Para um diâmetro ou espessura não qualificado X X
(5) Para uma progressão vertical de soldagem não qualificada (aclive ou declive) X
(6) A omissão de reforço (se usado no teste WPQR) X X
(7) Para eletrodos múltiplos (se um único eletrodo foi usado no teste WPQR) mas não vice-versa Xa
a
Não para ESW ou EGW
B
Soldadores qualificados para SAW, GMAW, FCAW, ou GTAW devem ser considerados como operadores de soldagem qualificados no(s) mesmo(s) processo(s) e sujeitos
às limitações de variável essencial do soldador
c
Uma solda em chanfro qualifica uma solda de tampão (slot) para a posição WPQR e as faixas de espessura, como mostrado na Tabela 4 11
Notas:
1 Um “x” indica aplicabilidade para a soldagem para a equipe de soldagem; uma área sombreada indica não aplicabilidade
2 WPQR = Registro de Qualificação de Desempenho de Soldagem
Tabela 4.13
Grupos de Classificação de Eletrodo
(ver Tabela 4.12)
Designação de Grupo Classificação de Eletrodo AWS
F4 EXX15, EXX16, EXX18, EXX48, EXX15-X, EXX16-X, EXX18-X
F3 EXX10, EXX11, EXX10-X, EXX11-X
F2 EXX12, EXX13, EXX14, EXX13-X
F1 EXX20, EXX24, EXX27, EXX28, EXX20-X, EXX27-X
AWS D1.1/D1.1M:2010 4. QUALIFICAÇÃO
157
Tabela 4.14
Requisitos de Teste CVN (ver 4.36)
Processo de
Soldagema
Local do Teste Número de
Espécimesb
Temperatura de
Teste
ºF/ºC
Tamanho do
Espécime,d
mm
Mínima Energia
Média
Absorvidae
pés-librasf
[J]
Mínima Energia
Individual
Absorvida,e
pés-librasf
[J]
Mínima Média
Percentual
da Área de
Cisalhamento,
%
Mínima
Expansão
Lateral
Média,
Mils/rnrn
SMAW
GTAW
GMAW
SAW
Metal de Solda 3 (Nota c) 10X10 20 [27] 15 [20] (Nota f) (Nota f)
Linha de Fusão
+1 mm
3 (Nota c) 10X10 20 [27] 15 [20] (Nota f) (Nota f)
ESW
EGW
FCAW-S
FCAW-G
Linha de Fusão
+5 mm
3 (Nota c) 10X10 20 [27] 15 [20] (Nota f) (Nota f)
a
Uma WPS que combina FCAW-S com outro processo de soldagem deve ser especificamente testada para assegurar que critérios de teste CVN sejam atendidos na interface
entre os depósitos de solda
b
O número alternativo de espécimes permitidos por local de teste é cinco Os valores mais altos e mais baixos devem ser descartados para minimizar parte da dispersão
normalmente associada com teste CVN de soldas e HAZs
c
Temperaturas de teste devem ser especificadas em documentos ou especificações de contrato Quando espécimes de tamanho inferior são requeridos, e a largura dos
espécimes através do entalhe é menos de 80% da espessura do metal base, a temperatura de teste deve ser reduzida em conformidade com a Tabela 4 15
d
Espécimes de tamanho total devem ser usados quando os materiais de teste são de 7/16 in [11 mm] ou mais grossos Espécimes de tamanho inferior devem ser usados
quando a espessura do material de teste é menor que 7/16 in [11 mm], ou quando a geometria da ligação soldada proíbe a remoção de amostras de tamanho total
e
Aplicável em soldas entre materiais base com um limite de escoamento mínimo especificado (SMYS) de 50 ksi [345 MPa] ou menos Critérios de aceitação de soldas entre
materiais excedendo SYMS de 50 ksi [345 MPa] devem ser especificados por documentos ou especificações de contrato
f
Valores para cisalhamento percentual ou expansão lateral devem ser registrados quando especificado pelos documentos ou especificações de contrato
Tabela 4.15
Redução de Temperatura de Teste CVN (ver 4.36.5)
Para espécimes de teste CVN de tamanho inferior em que a largura através do entalhe é
menos que 80% da espessura do metal base.
Tamanho do Espécime
mm
Redução de Temperatura de Teste Abaixo da Temperatura de Teste Especificada
ºF ºC
10 × 10
10 × 9
10 × 8
10 × 7,5
10 × 7
10 × 6,7
10 × 6
10 × 5
10 × 4
10 × 3,3
10 × 3
10 × 2,5
0
0
0
5
8
10
15
20
30
35
40
50
0
0
0
2,8
4,5
5,6
8,4
11,1
16,8
19,4
22,4
27,8
Exemplo: Se desenhos de projeto ou especificações indicam que testes CVN devem ser realizados a 32°F [0°C] e espécimes de menor tamanho de 10 mm × 5 mm são usados;
a temperatura real de teste seria 12°F [–11°C]
Observação: A redução nos valores mínimos de aceitação de energia para espécimes de tamanho inferior deve ser determinada em conformidade com A 370a-97, da ASTM,
Tabela 9
AWS D1.1/D1.1M:2010 4. QUALIFICAÇÃO
158
Tabulação de Posições de Solda em Chanfro
Posição Referência de Diagrama Inclinação do Eixo Rotação da Face
Plana A 0º a 15º 150º a 210º
Horizontal B 0º a 15º
80° a 150°
210° a 280°
Suspensa C 0º a 80º
0° a 80°
280° ao 360°
Vertical
D
E
15° to 80°
80° to 90°
80° a 280°
0° a 360°
Observações:
1. O plano de referência horizontal deve sempre ser tomado de forma a jazer abaixo da solda sob consideração.
2. A inclinação de eixo deve ser medida a partir do plano de referência horizontal em direção ao plano de referência vertical.
3. O ângulo de rotação da face deve ser determinado por uma linha perpendicular à face teórica da solda que passa através do eixo da
solda. A posição de referência (0 ) de rotação da face invariavelmente aponta em direção oposta àquela na qual o ângulo do eixo
aumenta. Quando olhando para o ponto P, o ângulo de rotação da face da solda deve ser medido numa direção de sentido horário a
partir da posição de referência (0 ).
Figura 4.1 – Posições de Soldas em Chanfro (ver 4.3.4)
AWS D1.1/D1.1M:2010 4. QUALIFICAÇÃO
159
Tabulação de Posições de Soldas de Filete
Posição Referência de Diagrama Inclinação de Eixo Rotação de Face
Plana A 0º a 15º 150º a 210º
Horizontal B 0º a 15º
125° a 150°
210° a 235°
Suspensa C 0º a 80º
0° a 125°
235° ao 360°
Vertical
D
E
15° to 80°
80° to 90°
125° a 235°
0° a 360°
Figura 4.2 – Posições de Soldas de Filete (ver 4.3.4)
AWS D1.1/D1.1M:2010 4. QUALIFICAÇÃO
160
Figura 4.3 – Posições de Placas de Teste para Soldas em Chanfro (ver 4.3.4)
AWS D1.1/D1.1M:2010 4. QUALIFICAÇÃO
161
Figura 4.4 – Posições de Cano ou Tubulação de Teste para Soldas em
Chanfro
(ver 4.3.4)
AWS D1.1/D1.1M:2010 4. QUALIFICAÇÃO
162
Figura 4.5 – Posições de Placa de Teste para Soldas de Filete (ver 4.3.4)
AWS D1.1/D1.1M:2010 4. QUALIFICAÇÃO
163
Reproduzido de A3.0M/A3.0:2010, Standard Welding Terms and Definitions, Including Terms for Adhesive
Bonding, Brazing, Soldering,Thermal Cutting, and Thermal Spraying, da AWS, Figura B.20, Miami:
American Welding Society.
Figura 4.6 - Posições de Cano ou Tubulação de Teste para Soldas de Filete
(ver 4.3.4)
AWS D1.1/D1.1M:2010 4. QUALIFICAÇÃO
164
Figura 4.7 – Locais de Espécimes de Teste em Cano de Teste Soldado (ver
4.9)
AWS D1.1/D1.1M:2010 4. QUALIFICAÇÃO
165
Figura 4.8 – Locais de Espécimes de Teste para Tubulação de Caixa Soldada
(ver 4.9)
AWS D1.1/D1.1M:2010 4. QUALIFICAÇÃO
166
Observações:
1. A configuração de chanfro mostrada é meramente ilustrativa. A forma de chanfro testada deve estar em conformidade com a forma de
chanfro de produção que está sendo qualificada.
2. Quando espécimes de teste CVN são requeridos, ver Cláusula 4, Parte D para requisitos.
3. Todas as dimensões são mínimas.
Figura 4.9—Local de Espécimes de Teste em Placas de Teste Soldadas -
ESW e EGW – Qualificação WPS (ver 4.9)
AWS D1.1/D1.1M:2010 4. QUALIFICAÇÃO
170
a
Um espécime de maior comprimento pode ser necessário quando usando um suporte de flexão do tipo integrado ou quando testando
aço com um limite de escoamento de 90 ksi [620 MPa] ou mais.
b
Para placas com espessura acima de 1-1/2 in [38 mm], o espécime deve ser cortado em tiras aproximadamente iguais com T entre 3/4
in [20 mm] e
1-1/2 in [38 mm] e cada tira testada.
c
t = espessura de placa ou cano.
Figura 4.13—Espécimes de Flexão Lateral (ver 4.9.3.1)
AWS D1.1/D1.1M:2010 4. QUALIFICAÇÃO
171
Dimensões em polegadas [mm]
Espessura Nominal de Placa de Teste, Tp Cano de Teste
in
[25 mm]
1 in [25 mm]
< Tp < 1-1/2
in
[38 mm]
-1/2
in
[38 mm]
Diâmetro de
2 in [50 mm]
&
3 in [75 mm]
Diâmetro ou Cano de Tamanho de Trabalho
Maior
6 in [150 mm] &
8 in [200 mm]
A – Comprimento de seção reduzida
Face mais larga da solda + 1/2 in [12 mm],
2-1/4 in [60 mm] min
Face mais larga da solda + 1/2 in
[12 mm], 2-1/4 in [60 mm] min
L – Comprimento geral, mina
Como requerido por equipamento de teste Como requerido por equipamento de teste
W – Largura de seção reduzidab,c
3/4 in
[20 mm]
min
3/4 in
[20 mm]
min
3/4 in
[20 mm]
min
1/2 ± 0 01
(12 ± 0 025)
3/4 in [20 mm]
min
C – Largura da seção de aderência c,d
W + 1/2
in
[12 mm]
min
W + 1/2 in
[12 mm] min
W + 1/2 in
[12 mm] min
W + 1/2 in
[12 mm] min
W + 1/2 in
[12 mm] min
t – Espessura do espécimee,f
Tp Tp
Tp/n
(Note f)
Máximo possível com faces planas
paralelas dentro do comprimento A
r – Raio de filete, min
1/2 in
[12 mm]
1/2 in
[12 mm]
1/2 in
[12 mm]
1/2 in [25 mm] 1/2 in [25 mm]
a
É desejável, se possível, fazer o comprimento da seção de aderência grande o suficiente para permitir que o espécime estenda até as
alças uma distância igual a dois terços ou mais do comprimento das alças.
b
As extremidades da seção reduzida não devem diferir em largura por mais de 0,004 in [0,102 mm]. Além disso, também pode haver
decréscimo gradual na largura a partir das extremidades para o centro, mas as larguras de qualquer das extremidades não deve ser 0,015
in [0,381 mm] maior que a largura no centro.
c
Larguras mais estreitas (W e C) podem ser usadas quando necessário. Em tais casos, a largura da seção reduzida deveria ser tão grande
quanto a largura do material sendo testado permite. Se a largura do material é menor que W, os lados podem ser paralelos em todo o
comprimento do espécime.
d
Para espécimes padrão do tipo placa, as extremidades do espécime devem ser simétricas com a linha de centro da seção reduzida no
âmbito de 1/4 in [6 mm].
e
A dimensão t é a espessura do espécime conforme fornecido nas especificações de material aplicáveis. A espessura nominal mínima de
espécimes de largura de 1-1/2 in [38 mm] deve ser 3/16 in [5 mm] exceto conforme permitido pela especificação do produto.
f
Para placas com espessura acima de 1-1/2 in [38 mm], espécimes podem ser cortados em tiras aproximadamente iguais. Cada tira deve
ter espessura de pelo menos 3/4 in [20 mm]. Os resultados de teste de cada tira devem atender os requisitos mínimos.
Observação: Devido à capacidade limitada de algumas máquinas de teste de tensão, dimensões alternadas de espécime para aços da
Tabela 4.9 podem ser usadas quando aprovado pelo Engenheiro.
Figura 4.14—Espécimes de Tensão de Seção Reduzida (ver 4.9.3.4)
AWS D1.1/D1.1M:2010 4. QUALIFICAÇÃO
172
Limite de escoamento Específico ou Real do Metal Base
A
in [mm]
B
in [mm]
C
in [mm]
D
in [mm]
50 ksi [345 MPa] & abaixo
1-1/2
[38,1]
3/4 [19,0]
2-3/8
[60,3]
1-3/16 [30,2]
acima de 50 ksi [345 MPa] até 90 ksi [620 MPa] 2 [50,8] 1 [25,4]
2-7/8
[73,0]
1-7/16 [36,6]
90 ksi [620 MPa] & acima
2-1/2
[63,5]
1-1/4
[31,8]
3-3/8
[85,7]
1-11/16
[42,9]
Observaçãoes: Êmbolo e superfícies interiores matriz devem ser acabados por usinagem.
Figura 4.15—Separador de Teste de Flexão Guiado (ver 4.9.3)
AWS D1.1/D1.1M:2010 4. QUALIFICAÇÃO
173
Limite de escoamento Específico ou Real do
Metal Base, ksi [MPa]
A
in
B
in
A
Mm
B
mm
50 [345] & abaixo 1-1/2 3/4 38,1
19,0
acima de 50 [345] até 90 [620] 2 1 50,8 25,4
90 [620] & acima 2-1/2 1-1/4 63,5 21,8
Figura 4.16—Separador de Teste de Flexão Alternativo Integrado Guiado (ver
4.9.3)
Limite de escoamento Específico
ou Real do Metal Base, ksi
[MPa]
A
in
B
in
C
mm
A
Mm
B
mm
C
mm
50 [345] & abaixo 1-1/2 3/4 2-3/8 38,1 19,0 60,3
acima de 50 [345] até 90 [620] 2 1 2-7/8 50,8 25,4 73,0
90 [620] & acima 2-1/2 1-1/4 3-3/8 63,5 21,8 85,7
Figura 4.17—Separador Alternativo de Teste de Flexão Guiado e Equipado
com Rolete para Ejeção Inferior de Espécime de Teste (ver 4.9.3)
AWS D1.1/D1.1M:2010 4. QUALIFICAÇÃO
174
Dimensões em polegadas
Diâmetro Nominal
Espécime Padrão
Espécimes de Tamanho Pequeno Proporcional ao
Padrão
0,500 in Round 0,350 in Round 0,250 in Round
G – Comprimento do medidor 2,000 ± 0,005 1,400 ± 0,005 1,000 ± 0,005
D - Diâmetro (Note a) 0,500 ± 0,010 0,350 ± 0,007 0,250 ± 0,005
r – Raio de filete, min. 3/8 1/4
3/16
A – Comprimento de seção
reduzida (Nota b), min.
2-1/4 1-3/4 1-1/4
Dimensões (versão métrica por ASTM E 8M)
Diâmetro Nominal
Espécime Padrão
Espécimes de Tamanho Pequeno Proporcional ao
Padrão
12,5 mm Round 9 mm Round 6 mm Round
G – Comprimento do medidor 62,5 ± 0,1 45,0 ± 0,1
30,0 ± 0,1
D - Diâmetro (Nota a) 12,5 ± 0,2 9,0 ± 0,1
6,0 ± 0,1
r – Raio de filete min. 10 8 6
A – Comprimento de seção
reduzida (Nota b), min.
74 54 36
a
A seção reduzida pode ter um estreitamento gradual das extremidades em direção ao centro, com as extremidades não mais que 1%
maiores em diâmetro que o centro (dimensão de controle).
b
Se desejado, o comprimento da seção reduzida pode ser aumentado para acomodar um extensômetro com qualquer comprimento de
medidor conveniente. Marcas de referência para a medida de alongamento deveriam ser espaçadas no comprimento de medidor
indicado.
Observação: O comprimento de medidor e filetes deve ser como mostrado, mas as extremidades podem ser de qualquer forma para
ajustar-se aos suportes da máquina de teste de tal forma que a carga deva ser axial. Se as extremidades serão mantidas em alças de cunha,
é desejável, se possível, fazer o comprimento da seção de aderência grande o suficiente para permitir que o espécime estenda-se para as
alças uma distância igual a dois terços ou mais do comprimento das alças.
Figura 4.18—Espécime de Tensão de Metal Depositado (ver 4.9.3.6)
AWS D1.1/D1.1M:2010 4. QUALIFICAÇÃO
175
POLEGADAS MILÍMETROS
Tamanho de
Solda
T1 min. T2 min. Tamanho de Solda T1 min. T2 min.
1/8
3/16
1/4
5/16
3/8
1/2
5/8
3/4
>3/4
1/4
1/2
3/4
1
1
1
1
1
1
3/16
3/16
1/4
5/16
3/8
1/2
5/8
3/4
1
3
5
6
8
10
12
16
20
>20
6
12
20
25
25
25
25
25
25
5
5
6
8
10
12
16
20
25
Observação: Quando a espessura máxima de placa usada na produção é menor que o valor mostrado acima, a espessura máxima das
peças de produção pode ser substituída por T1 e T2.
Figura 4.19—Testes de Estabilidade de Soldas de Filete para Qualificação
WPS
(ver 4.12.2)
AWS D1.1/D1.1M:2010 4. QUALIFICAÇÃO
176
Figura 4.20—Teste de Estabilidade de Solda de Filete em Cano—Qualificação
WPS (ver 4.12.2)
AWS D1.1/D1.1M:2010 4. QUALIFICAÇÃO
177
a
A espessura de reforço deve ser 1/4 in [6 mm] min. a 3/8 in [10 mm] máx.; largura de reforço deve ser 3 in [75 mm] min. quando não
removido para RT, ou então 1 in [25 mm] min.
Observação: Quando RT é usado, soldas provisórias não devem estar na área de teste.
Figura 4.21—Placa de Teste para Espessura Ilimitada—Qualificação de
Soldador
(ver 4.24.1)
a
A espessura de reforço deve ser 3/8 in [10 mm] min. a 1/2 in [12 mm] máx.; largura de reforço deve ser 3 in [75 mm] min. quando não
removido para RT, ou então 1-1/2 in [40 mm] min.
Observações:
1. Quando RT é usado, soldas provisórias não devem estar na área de teste.
2. A configuração de junta de uma WPS qualificada pode ser usada em lugar das configurações de chanfro mostradas aqui.
Figura 4.22 – Placa de Teste para Espessura Ilimitada – Qualificação de
Operador de Soldagem (ver 4.24.2)
AWS D1.1/D1.1M:2010 4. QUALIFICAÇÃO
178
Figura 4.23 - Local de Espécime de Teste em Placa de Teste Soldada de
Espessura de 1 in [25 mm] – Verificação de Consumíveis para Qualificação
WPS de Soldas de Filete (ver 4.12.3)
AWS D1.1/D1.1M:2010 4. QUALIFICAÇÃO
179
Observação: T = espessura de parede de cano ou tubo de caixa de qualificação
Figura 4.24 – Junta de Topo Tubular – Qualificação de Soldador com ou sem
Reforço (ver 4.27)
Observação: T = espessura de parede de cano ou tubo de caixa de qualificação.
Figura 4.25—Junta de Topo Tubular—Qualificação WPS com e sem Reforço
(ver 4.13.1 e 4.13.2)
AWS D1.1/D1.1M:2010 4. QUALIFICAÇÃO
180
Figura 4.26 – Teste de Calcanhar de Ângulo Agudo (Retenções Não
Mostradas)
(Ver 4.13.4.2)
AWS D1.1/D1.1M:2010 4. QUALIFICAÇÃO
181
Figura 4.27 – Junta de Teste para Conexões em T-, Y-, e K- sem Reforço em
Cano ou Tubulação de Caixa (≥6 in [150 mm] O.D.) – Qualificação de
Soldador e WPS
(ver 4.13.4.1 e 4.27)
AWS D1.1/D1.1M:2010 4. QUALIFICAÇÃO
182
Figura 4.28 – Junta de Teste para Conexões em T-, Y-, e K- sem Reforço em
Cano ou Tubulação de Caixa (< 4 in [100 mm] O.D.) – Qualificação de
Soldador e WPS
(ver 4.13.4.1 e 4.27)
AWS D1.1/D1.1M:2010 4. QUALIFICAÇÃO
183
Figura 4.29 – Junta de Ângulo de Ensaio Macrográfico para Conexões em T-,
Y-, e K- sem Reforço em Tubulação de Caixa para Soldas em Chanfro CJP -
Qualificação WPS e de Soldador (ver 4.13.4.1 e 4.27)
AWS D1.1/D1.1M:2010 4. QUALIFICAÇÃO
184
a
Quando RT é usado, soldas provisórias não devem estar na área de teste.
b
A espessura de reforço deve ser 1/4 in [6 mm] min. a 3/8 in [10 mm] máx.; a largura do reforço deve ser 3 in [75 mm] min. quando não
removido para RT, ou então 1 in [25 mm] min.
Figura 4.30 – Placa de Teste Opcional para Espessura Ilimitada – Posição
Horizontal– Qualificação de Soldador (ver 4.24.1)
AWS D1.1/D1.1M:2010 4. QUALIFICAÇÃO
185
a
Quando RT é usado, soldas provisórias não devem estar na área de teste.
b
A espessura de reforço deve ser 1/4 in [6 mm] min. a 3/8 in [10 mm] máx.; a largura de reforço deve ser 3 in [75 mm] min. quando não
removido para RT, ou então 1 in [25 mm] min.
c
Para placa de 3/8 in [10 mm], um teste de flexão lateral pode ser substituído por cada um dos testes de flexão de face e raiz requeridos.
Figura 4.31 – Placa de Teste para Espessura Limitada – Todas as Posições –
Qualificação de Soldador (ver 4.24.1)
AWS D1.1/D1.1M:2010 4. QUALIFICAÇÃO
186
a
Quando RT é usado, soldas provisórias não devem estar na área de teste.
b
A espessura de reforço deve ser 1/4 in [6 mm] min. a 3/8 in [10 mm] máx.; a largura de reforço deve ser 3 in [75 mm] min. quando não
removido para RT, ou então 1 in [25 mm] min.
c
Para placa de 3/8 in [10 mm], um teste de flexão lateral pode ser substituído por cada um dos testes de flexão de face e raiz requeridos.
Figura 4.32 – Placa de Teste Opcional para Espessura Limitada – Posição
Horizontal– Qualificação de Soldador (ver 4.24.1)
AWS D1.1/D1.1M:2010 4. QUALIFICAÇÃO
187
Figure 4.33 – Placa de Teste de Flexão de Raiz de Solda de Filete –
Qualificação de Soldador ou Operador de Soldagem - Opção 2 (Ver 4.29 ou
4.26)
AWS D1.1/D1.1M:2010 4. QUALIFICAÇÃO
188
a
Para espessura de parede de 3/8 in [10 mm], um teste de flexão lateral pode ser substituído por cada um dos testes de flexão de face e
raiz requeridos.
Figura 4.34 – Local de Espécime de Teste em Cano e Tubulação de Caixa de
Teste Soldados – Qualificação de Soldador (ver 4.20.1.2)
AWS D1.1/D1.1M:2010 4. QUALIFICAÇÃO
189
Figura 4.35 – Método de Ruptura de Espécime - Qualificação de Soldador
Ponteador (ver 4.32)
a
Abertura de raiz “R” estabelecida por WPS.
b
T = máximo a ser soldado na construção, mas não precisa exceder 1-1/2 in [38 mm].
c
Extensões não precisam ser usadas se a junta é de comprimento suficiente para fornecer 17 in [430 mm] de boa solda.
Figura 4.36 – Junta de Topo para Qualificação de Operador de Soldagem -
ESW e EGW (ver 4.24.2)
AWS D1.1/D1.1M:2010 4. QUALIFICAÇÃO
190
a
L = 8 in [200 mm] min. (soldador), 15 in [380 mm] min. (operador de soldagem).
b
Qualquer das extremidades pode ser usada para o espécime de análise macrográfica requerido. A outra extremidade pode ser descartada.
Figura 4.37 – Ruptura de Solda de Filete e Placa de Ensaio Macrográfico –
Qualificação de Soldador ou Operador de Soldagem—Opção 1 (ver 4.29 ou
4.26)
AWS D1.1/D1.1M:2010 4. QUALIFICAÇÃO
191
a
L1 = 2 in [50 mm] min. (soldador), 3 in [75 mm] min. (operador de soldagem);
L2 = 3 in [75 mm] min. (soldador), 5 in [125 mm] min. (operador de soldagem).
Figura 4.38 – Placa de Ensaio Macrográfico de Solda de Tampão (Plug) –
Qualificação de Soldador ou Operador de Soldagem (ver 4.15) e Qualificação
WPS (ver 4.30)
AWS D1.1/D1.1M:2010 4. QUALIFICAÇÃO
192
Figura 4.39 – Espécime de Ruptura de Solda de Filete – Qualificação de
Soldador Ponteador (ver 4.20.2)
AWS D1.1/D1.1M:2010 4. QUALIFICAÇÃO
193
Figura 4.40 – Locais de Espécime de Teste CVN (ver 4.35.1)
AWS D1.1/D1.1M:2010
194
5. Fabricação
5.1 Escopo
Todas as provisões aplicáveis dessa seção devem ser
observadas na fabricação e ereção de estruturas e
montagens soldadas produzidas sob qualquer processo
aceitável sob este código (ver 3.2 e 4.15).
5.2 Metal Base
5.2.1 Metal Base Especificado. Os documentos de
contrato devem designar a especificação e classificação
do metal base a ser usado. Quando soldagem está
envolvida na estrutura, metais base aprovados, listados
na Tabela 3.1 ou Tabela 4.9, deveriam ser usados
sempre que possível.
5.2.2 Metal Base para Reforço, Espaçadores e Guia de
Solda
5.2.2.1 Guias de Solda. Guias de solda usadas em
soldagem devem estar em conformidade com os
seguintes requisitos:
(1) Quando usadas em soldagem com um aço
aprovado listado na Tabela 3.1 ou Tabela 4.9, elas
podem ser de qualquer dos aços listados na Tabela 3.1
ou Tabela 4.9.
(2) Quando usadas em soldagem com um aço
qualificado em conformidade com 4.8.3 elas podem
ser:
(a) Do aço qualificado, ou
(b) De qualquer aço listado na Tabela 3.1 ou
Tabela 4.9
5.2.2.2 Reforço e Barras de Prateleira. Aço para
reforço e barras de prateleira devem estar em
conformidade com os requisitos de 5.2.2.1 ou A 109 T3
e T4, da ASTM, exceto aço de limite de escoamento
mínimo de 100 ksi [690 MPa] como reforço deve ser
usado apenas com aços de limite de escoamento
mínimo de 100 ksi [690 MPa].
5.2.2.3 Espaçadores. Espaçadores devem ser do
mesmo material do metal base.
5.3 Consumíveis de Soldagem e
Requisitos de Eletrodo
5.3.1 Geral
5.3.1.1 Certificação para Combinações para
Eletrodos ou Eletrodo-Fluxo. Quando requisitado
pelo Engenheiro, o Empreiteiro ou construtor deve
fornecer certificação de que a combinação de eletrodo
ou eletrodo-fluxo está em conformidade com os
requisitos da classificação.
5.3.1.2 Adequação de Classificação. A
classificação e tamanho do eletrodo, comprimento de
arco, voltagem, e amperagem devem ser adequadas à
espessura do material, tipo de chanfro, posições de
soldagem e outras circunstâncias relativas ao trabalho.
A corrente de soldagem deve estar dentro da faixa
recomendada pelo fabricante do eletrodo.
5.3.1.3 Gás de Proteção. Um gás ou mistura de
gases usados para proteção devem estar em
conformidade com os requisitos de A5.32, Specification
for Welding Shielding Gases, da AWS. Quando
requisitado pelo Engenheiro, o Empreiteiro ou
construtor deve fornecer certificação do fabricante de
gás de que o gás ou mistura de gases está em
conformidade com os requisitos de ponto de orvalho de
A5.32, da AWS. Quando misturados no local de
soldagem, medidores adequados devem ser usados para
estabelecer a proporção dos gases. A porcentagem de
gases deve estar em conformidade com os requisitos da
WPS.
5.3.1.4 Armazenamento. Consumíveis de
soldagem que tenham sido removidos do pacote original
devem ser protegidos e armazenados de tal forma que as
propriedades de soldagem não sejam afetadas.
5.3.1.5 Condição. Eletrodos devem estar secos e
em condições apropriadas de uso.
5.3.2 Eletrodos SMAW. Eletrodos para SMAW
devem estar em conformidade com os requisitos da
última edição de A5.1/A5.1M, Specification for Carbon
Steel Electrodes for Shielded Metal Arc Welding, da
AWS ou com os requisitos de AWS A5.5/A5.5M,
Specification for Low-Alloy Steel Electrodes for
Shielded Metal Arc Welding, da AWS.
5.3.2.1 Condições de Armazenamento de
Eletrodo com Baixo Nível de Hidrogênio. Todos os
AWS D1.1/D1.1M:2010 5. FABRICAÇÃO
195
eletrodos que tenham revestimentos de baixo hidrogênio
em conformidade com A5.1 da AWS e A5.5 da AWS
devem ser adquiridos em contêineres hermeticamente
vedados ou devem ser cozidos pelo usuário em
conformidade com 5.3.2.4 antes do uso. Imediatamente
após a abertura do contêiner hermeticamente vedado, os
eletrodos devem ser armazenados em fornos mantidos a
uma temperatura de pelo menos 250°F [120°C].
Eletrodos devem ser recozidos não mais que uma vez.
Eletrodos que tenham sido molhados não devem ser
usados.
5.3.2.2 Períodos Aprovados de Tempo de
Exposição Atmosférica. Depois que contêineres
hermeticamente vedados são abertos ou após eletrodos
serem removidos de fornos de cozimento ou
armazenamento, a exposição do eletrodo à atmosfera
não deve exceder os valores mostrados na coluna A,
Tabela 5.1, para a classificação específica de eletrodo
com designadores suplementares opcionais, quando
aplicável. Eletrodos expostos à atmosfera por períodos
menores que aqueles permitidos pela coluna A, Tabela
5.1 podem ser devolvidos para um forno de retenção
mantido a 250°F [120°C] min.; depois de um período
mínimo de retenção de quatro horas a 250°F [120°C]
min. os eletrodos podem ser emitidos novamente.
5.3.2.3 Períodos Alternativos de Tempo de
Exposição Atmosférica Estabelecidos por Testes. Os
valores alternativos de tempo de exposição mostrados na
coluna B, na Tabela 5.1, podem ser usados contanto que
testes estabeleçam o tempo máximo permitido. Os
testes devem ser realizados em conformidade com A5.5
da AWS para cada classificação de eletrodo e cada
fabricante de eletrodo. Tais testes devem estabelecer que
os valores máximos de conteúdo de umidade de A5.5 da
AWS não sejam excedidos. Adicionalmente, eletrodos
de revestimento de baixo hidrogênio E70XX ou
E70XX-X (A5.1 ou A5.5 da AWS) devem ser limitados
a um conteúdo máximo de umidade que não exceda
0,4% por peso. Esses eletrodos não devem ser usados
em combinações relativas de temperatura-umidade que
excedam a umidade relativa ou o conteúdo de umidade
do ar que prevaleceu durante o programa de teste.
Para aplicação apropriada dessa subcláusula, ver Anexo F
para o gráfico com conteúdo sobre temperatura-
umidade e seus exemplos. O gráfico mostrado no
Anexo F, ou qualquer gráfico psicométrico padrão,
deve ser usado na determinação dos limites de
temperatura-umidade relativa.
5.3.2.4 Eletrodos de Cozimento. Eletrodos
expostos à atmosfera por períodos maiores que aqueles
permitidos na Tabela 5.1 devem ser cozidos como
segue:
(1) Todos os eletrodos que tenham revestimentos
de baixo hidrogênio em conformidade com A5.1 da
AWS devem ser cozidos por pelo menos duas horas
entre 500°F e 800°F [260°C e 430°C], ou
(2) Todos os eletrodos que tenham revestimento de
baixo hidrogênio em conformidade com A5.5 da AWS
devem ser cozidos por pelo menos uma hora a
temperaturas entre 700°F e 800°F [370°C e 430°C].
Todos os eletrodos devem ser colocados em um forno
adequado a uma temperatura que não exceda metade da
temperatura final de cozimento por um mínimo de meia
hora antes de aumentar a temperatura do forno até a
temperatura final de cozimento. O tempo de cozimento
final deve começar após o forno atingir a temperatura
final de cozimento.
5.3.2.5 Restrições de Eletrodo para Aços A 514
ou A 517 da ASTM. Quando usados para soldar aços
A 514 ou A 517 da ASTM, eletrodos de qualquer
classificação mais baixa que E100XX-X, exceto por
E7018M e E70XXH4R, devem ser cozidos por pelo
menos uma hora a temperaturas entre 700°F e 800°F
[370°C e 430°C] antes de serem usados, tenham eles
sido fornecidos em contêineres hermeticamente vedados
ou não.
5.3.3 Eletrodos e Fluxos SAW. SAW pode ser
realizada com um ou mais eletrodos únicos, um ou
mais eletrodos paralelos, ou combinações de eletrodos
únicos e paralelos. O espaçamento entre arcos deve ser
tal que a cobertura de escória sobre o metal de solda
produzida por um arco guia não resfrie o suficiente para
impedir o depósito de solda apropriado de um eletrodo
seguinte. SAW com múltiplos eletrodos pode ser usada
por qualquer passe de chanfro ou de solda de filete.
5.3.3.1 Requisitos de Combinação Eletrodo-
Fluxo. Os eletrodos nus e fluxo usados em combinação
de aços para SAW devem estar em conformidade com
os requisitos da última edição de A5.17, Specification
for Cabon Steel Electrodes and Fluxes for Submerged
Arc Welding, da AWS ou com os requisitos da
última edição de A5.23, Specification for Low Alloy
Steel Electrodes and Fluxes for Submerged Arc Welding,
da AWS.
5.3.3.2 Condição de Fluxo. Fluxo usado para
SAW deve estar seco e livre de contaminação por
poeira, óxido de ferro ou outro corpo estranho. Todo
fluxo deve ser adquirido em pacotes que possam ser
armazenados, sob condições normais, por pelo menos
seis meses sem que tal armazenagem afete suas
características de soldagem ou propriedades de solda.
Fluxo proveniente de pacotes danificados deve ser
descartado ou deve ser seco a uma temperatura mínima
de 500°F [260°C] por uma hora antes do uso. O fluxo
deve ser colocado em um sistema de descarte logo após
a abertura de um pacote, ou se usado de um pacote
aberto, uma polegada do topo deve ser descartada.
Fluxo que tenha sido molhado não deve ser usado.
5.3.3.3 Recuperação de Fluxo. Fluxo SAW que
não tenha sido derretido durante a operação de
soldagem pode ser reutilizado após recuperação por
aspiração, coleta, varredura ou outros meios. O
construtor de soldagem deve ter um sistema para coletar
fluxo não derretido, adicionar novo fluxo, e soldar com
a mistura desses dois, de tal forma que a composição de
fluxo e distribuição de tamanho de partícula na
pudlagem de solda sejam relativamente constantes.
AWS D1.1/D1.1M:2010 5. FABRICAÇÃO
196
5.3.3.4 Escória Prensada. Escória prensada pode
ser usada contanto que tenha sua própria marca,
usando o nome do prensador e a designação da marca.
Além disso, cada lote seco ou batch ou mistura seca
(lote) de fluxo, como definido em A5.01, Filler Metal
Procurement Guidelines, da AWS, deve ser testado em
conformidade com Schedule I de A5.01 da AWS e
classificado pelo Empreiteiro ou prensador por A5.17
ou A5.23, da AWS, conforme aplicável.
5.3.4 Eletrodos GMAW/FCAW. Os eletrodos para
GMAW ou FCAW devem estar em conformidade com
os requisitos de 5.3.4.1 ou 5.3.4.2, conforme aplicável.
5.3.4.1 Metal de Solda de Limite de
escoamento Igual ou Menor que 60 ksi [415
MPa]. Eletrodos para produzir metal de solda com
limites de elasticidade mínimos especificados de 60 ksi
[415 MPa] ou menos devem estar em conformidade
com a última edição de A5.18/A5.18M, Specification
for Carbon Steel Electrodes and Rods for Gas Shielded
Arc Welding, da AWS, ou A5.20/A5.20M, Specification
for Carbon Steel Electrodes for Flux Cored Arc
Welding, da AWS, conforme aplicável.
5.3.4.2 Metal de Solda de Limite de escoamento
Maior que 60 ksi [415 MPa]. Eletrodos para produzir
metal de solda com limites de elasticidade especificados
maiores que 60 ksi [415 MPa] devem estar em
conformidade com a última edição de A5.28/A5.28M,
Specification for Low-Alloy Steel Electrodes and Rods
for Gas Shielded Arc Welding, da AWS, ou
A5.29/A5.29M, Specification for Low Alloy Steel
Electrodes for Flux Cored Arc Welding, da AWS,
conforme aplicável.
5.3.5 GTAW
5.3.5.1 Eletrodos de Tungstênio. A corrente de
soldagem deve ser compatível com o diâmetro e tipo ou
classificação de eletrodo. Eletrodos de tungstênio
devem estar em conformidade com A5.12, Specification
for Tungsten and Tungsten Alloy Electrodes for Arc
Welding and Cutting, da AWS.
5.3.5.2 Metal de Adição. O metal de adição deve estar
em conformidade com todos os requisitos da última
edição de A5.18 ou A5.28 e A5.30, Specification for
Consumable Inserts, da AWS, conforme aplicável.
5.4 Processos ESW e EGW
5.4.1 Limitações de Processo. Os processos ESW e
EGW devem ser restritos ao uso da Tabela 3.1, aços
Grupo I, II, e III, exceto que ESW e EGW de A 710
não devem ser permitidas.
5.4.2 Condição de Eletrodos e Tubos de Guia.
Eletrodos e tubos de guia consumíveis devem estar
secos, limpos e em condições adequadas para uso.
5.4.3 Condição de Fluxo. Fluxo usado para ESW
deve estar seco e livre de contaminação por poeira,
óxido de ferro ou outro corpo estranho. Todo fluxo
deve ser adquirido em pacotes que podem ser
armazenados, sob condições normais, por pelo menos
seis meses sem tal armazenamento afetar suas
características de soldagem ou propriedades de solda.
Fluxo proveniente de pacotes danificados em trânsito ou
por manipulação devem ser descartados ou devem ser
secos a uma temperatura mínima de 250°F [120°C] por
uma hora antes do uso. Fluxo que tenha sido molhado
não deve ser usado.
5.4.4 Inícios e Interrupções de Soldagem. Soldas
devem ser iniciadas de tal maneira que permita a
formação de calor suficiente para fusão completa do
metal de solda às faces em chanfro da junta. Soldas que
foram interrompidas em qualquer ponto na junta de
solda por tempo suficiente para permitir que a escória
ou poça de fusão comece a se solidificar podem ser
reiniciadas e completadas, contanto que a solda
completa seja examinada por UT por um mínimo de 6
in [150 mm] em cada lado do reinício e, a menos que
proibido por geometria da junta, também confirmada
por RT. Todos os referidos locais de reinício devem ser
registrados e relatados ao Engenheiro.
5.4.5 Pré-aquecimento. Por causa da característica de
alto aporte de calor desses processos, o pré-
aquecimento não é normalmente requerido. No entanto,
nenhuma solda deve ser realizada quando a temperatura
do metal base metal no ponto de soldagem for abaixo de
32°F [0°C].
5.4.6 Reparos. Soldas que tenham descontinui-dades
proibidas pela Cláusula 6, Parte C devem ser reparadas
como permitido por 5.26 utilizando um processo de
soldagem qualificado, ou a solda inteira deve ser
removida e substituída.
5.4.7 Requisitos de Aço Exposto às Intempéries.
Para ESW e EGW de aplicações de aço exposto, nu,
sem pintura, de ASTM A 588 requerendo metal de
solda com resistência à corrosão atmosférica e
características de coloração similares às do metal base,
a combinação eletrodo-fluxo deve estar em
conformidade com 4.18.2, e a composição química do
metal de adição deve estar em conformidade com a
Tabela 3.3.
5.5 Variáveis WPS.
As variáveis de soldagem devem estar em
conformidade com uma WPS por escrito (ver Anexo N,
Formulário N-1, como um exemplo). Cada passe terá
fusão completa com o metal base adjacente, e de tal
forma que não haja depressões ou mordeduras indevidas
na extremidade da solda. A concavidade excessiva de
passes iniciais deve ser evitada para prevenir trinca nas
raízes de juntas sob restrição. Todos os soldadores,
operadores de soldagem e soldadores ponteadores
devem ser informados sobra o uso apropriado da WPS,
e a WPS aplicável deve ser seguida durante a realização
da soldagem.
AWS D1.1/D1.1M:2010 5. FABRICAÇÃO
197
5.6 Temperaturas de Pré-
aquecimento e Interpasse
O metal base deve ser pré-aquecido, se requerido, a
uma temperatura não menor que o valor mínimo listado
na WPS (ver 3.5 para limitações pré-qualificadas de
WPS e Tabela 4.5 para limitações de variável essencial
qualificadas de WPS). Para combinações de metais
base, o pré-aquecimento mínimo deve ser baseado no
pré-aquecimento mínimo mais alto.
Esse pré-aquecimento e todas as temperaturas mínimas
de interpasse subsequentes devem ser mantidos durante
a operação de soldagem por uma distância pelo menos
igual à espessura da parte soldada mais grossa (mas não
menos que 3 in [75 mm]) em todas as direções a partir
do ponto de soldagem.
Requisitos de temperatura mínima de interpasse devem
ser considerados iguais aos requisitos de pré-
aquecimento, a menos que indicado de outra forma na
WPS.
A temperatura de pré-aquecimento e interpasse deve ser
verificada logo antes de iniciar o arco para cada passe.
5.7 Controle de Aporte de Calor
para Aços Resfriados e
Temperados.
Quando aços resfriados e temperados são soldados, o
aporte de calor deve ser restrito em conjunção com as
temperaturas máximas de pré-aquecimento e interpasse
requeridas. Tais considerações devem incluir o aporte
de calor adicional produzido em soldagem simultânea
nos dois lados de um membro comum. As limitações
anteriores devem estar em conformidade com as
recomendações do produtor. A goivagem com oxigênio
de aço resfriado e temperado deve ser proibida.
5.8 Tratamento Térmico de Alívio
de Tensão.
Quando requerido por documentos de contrato,
montagens soldadas devem sofrer tratamento térmico de
alívio de tensão. Usinagem final após alívio de tensão
deve ser considerada quando necessário para manter
tolerâncias dimensionais.
5.8.1 Requisitos. O tratamento de alívio de tensão deve
estar em conformidade com os seguintes requisitos:
(1) A temperatura do forno não deve exceder
600°F [315°C] ao tempo em que a montagem soldada é
colocada nele.
(2) Acima de 600°F [315°C], a taxa de
aquecimento não deve ser maior que 400°F [204°C] por
hora dividida pela espessura máxima do metal na parte
mais grossa, em polegadas, mas de forma alguma mais
que 400°F [204°C] por hora. Acima de 600°F [315°C], a
taxa de aquecimento em °C/h não deve exceder 5600
dividido pela espessura máxima do metal, em
milímetros, mas não mais que 428°F/h [220°C/h].
Durante o período de aquecimento, variações de
temperatura através da porção da parte sendo aquecida
não devem ser maiores que 250°F [140°C] dentro de
qualquer intervalo de comprimento de 15 pés [5 m]. As
taxas de aquecimento e resfriamento não precisam ser
menores que 100°F [55°C] por hora. No entanto,
para todos os casos, a consideração de câmaras
fechadas e estruturas complexas pode indicar taxas
reduzidas de aquecimento e resfriamento para evitar
dano estrutural devido a gradientes térmicos excessivos.
(3) Depois que uma temperatura máxima de
1100°F [600°C] é atingida em aços resfriados e
temperados, ou uma faixa média de temperatura entre
1100°F e 1200°F [600°C e 650°C] é atingida em outros
aços, a temperatura da montagem deve ser mantida
dentro dos limites especificados por um tempo não
menor do que o especificado na Tabela 5.2, baseado na
espessura de solda. Quando o alívio de tensão
especificado é para estabilidade dimensional, o tempo
de retenção não deve ser menor que o especificado na
Tabela 5.2, baseado na espessura da parte mais grossa.
Durante o período de retenção não deve haver diferença
maior que 150°F [85°C] entre as temperaturas mais alta
e mais baixa através da porção da montagem sendo
aquecida.
(4) Acima de 600°F [315°C], o resfriamento deve
ser feito em um forno fechado ou câmara de
resfriamento a uma taxa não maior que 500°F [260°C]
por hora, dividido pela espessura máxima do metal da
parte mais grossa em polegadas, mas de forma alguma
mais que 500°F [260°C] por hora. A partir de 600°F
[315°C], a montagem pode ser resfriada em ar parado.
5.8.2 PWHT Alternativo. Como alternativa, quando
PWHT é impraticável para as limitações de temperatura
estabelecidas em 5.8.1, montagens soldadas podem
sofrer alívio de tensão a temperaturas mais baixas por
períodos mais longos de tempo, como dado na Tabela
5.3.
5.8.3 Aços Não Recomendados para PWHT. O
alívio de tensão de ligações soldadas em a ç o s
ASTM A 514, ASTM A 517, ASTM A 709 Graus 100
(690) e 100W (690W) e ASTM A 710 geralmente
não é recomendada. Alívio de tensão pode ser
necessário para aquelas aplicações em que ligações
soldadas devem ser requeridas para reter estabilidade
dimensional durante a usinagem ou em que a corrosão
por tensão pode estar envolvida, sendo que nenhuma
das condições é exclusiva de ligações soldadas
envolvendo aços A 514 da ASTM, A 517 da ASTM,
A 709 Graus 100 (690) e 100W (690W) da ASTM e A
710 da ASTM. No entanto, os resultados de testes de
tenacidade ao entalhe têm mostrado que PWHT pode na
verdade prejudicar o metal de solda e a tenacidade
HAZ, e trincas intergranulares podem às vezes ocorrer
na região de grãos grossos da solda HAZ.
AWS D1.1/D1.1M:2010 5. FABRICAÇÃO
198
5.9 Reforço, Gás de Reforço ou
Encaixes.
Soldas em chanfro CJP podem ser feitas com ou sem o
uso de gás de reforço, reforço ou encaixes consumíveis,
ou podem ter a raiz da solda inicial goivada, lascada ou
removida de outra forma do metal bom antes que a
soldagem seja começada no segundo lado.
5.10 Reforço.
Raízes de soldas em chanfro ou de filete podem ser
reforçadas por cobre, fluxo, fita de vidro, cerâmica, pó
de ferro ou materiais similares para evitar fundição
através. Elas também podem ser vedadas por meio de
passes de solda depositados com eletrodos de baixo
hidrogênio se SMAW é usado, ou por outros processos
de soldagem a arco. Reforço de aço deve estar em
conformidade com os seguintes requisitos:
5.10.1 Fusão. Soldas em chanfro feitas com o uso de
reforço de aço devem ter o metal de solda
completamente fundido com o reforço.
5.10.2 Reforço de Comprimento Total. Exceto
conforme permitido abaixo, reforço de aço deve ser
feito de forma continua para todo o comprimento da
solda. Todas as juntas no reforço de aço devem ser
juntas em topo de soldas em chanfro CJP que atendam
todos os requisitos da Cláusula 5 deste código.
Para aplicações estaticamente carregadas, reforço para
soldas para as extremidades de seções fechadas, tais
como seções estruturais ocas (HSS), são permitidos
desde que feitos de um ou dois pedaços com
descontinuidades desemendadas quando todas as
seguintes condições forem atingidas:
(1) A espessura nominal da parede da seção
fechada não deve exceder 5/8 in [16 mm].
(2) A seção fechada fora do perímetro não
exceder 64 in [163 mm].
(3) O reforço for transversal ao eixo
longitudinal da seção fechada.
(4) A interrupção no reforço não exceder 1/4 in
[6 mm].
(5) A solda com reforço descontínuo não estiver
mais perto de outros tipos de conexões que o diâmetro
HSS ou a dimensão principal da seção transversal.
(6) A interrupção no reforço não estiver
localizada nos cantos.
Para colunas de caixa estaticamente carregadas, reforço
descontínuo é permitido nos cantos soldados CJP, em
emendas de campo e em detalhes de conexão. Reforço
descontínuo é permitido em outras seções fechadas
quando aprovado pelo Engenheiro.
5.10.3 Espessura do Reforço. A espessura nominal
mínima recomendada de barras de reforço, dado que o
reforço deve ser de espessura suficiente para evitar
fundido através, é mostrada na seguinte tabela:
Espessura, min.
Processo in mm
GTAW 1/8 3
SMAW 3/16 5
GMAW 1/4 6
FCAW-S 1/4 6
FCAW-G 3/8 10
SAW 3/8 10
OBSERVAÇÃO: Reforço de aço para cano e
tubulação comercialmente disponível é aceitável,
contanto que não haja evidência de fusão em
superfícies interiores expostas.
5.10.4 Conexões Não Tubulares Carregadas
Ciclicamente. Para estruturas ciclicamente carregadas,
reforços de aço de soldas que sejam transversais à
direção da tensão computada devem ser removidos, e
as juntas devem ser retificadas ou receber acabamento
para ficarem lisas. Reforços de aço de soldas que sejam
paralelos à direção de tensão ou que não estejam
sujeitos à tensão computada não precisam ser
removidos, a menos que especificado pelo Engenheiro.
5.10.4.1 Reforços Anexados Externamente.
Quando o reforço de solda de soldas longitudinais em
estruturas ciclicamente carregadas é externamente
anexado ao metal base por soldagem, tal soldagem deve
ser contínua para o comprimento do reforço.
5.10.5 Conexões Carregadas Estaticamente. Reforço
de aço para soldas em estruturas carregadas
estaticamente (tubulares e não tubulares) não precisa ser
soldado em todo o comprimento e não precisa ser
removido a menos que especificado pelo Engenheiro.
5.11 Equipamentos de Corte e
Soldagem
Todo equipamento de soldagem e corte térmico deve
ser projetado e fabricado, e deve estar em tais condições
que permitam à equipe designada seguir os
procedimentos e conseguir os resultados descritos ao
longo deste código.
5.12 Ambiente de Soldagem
5.12.1 V e l o c i d a d e Máxima de Vento.
GMAW, GTAW, EGW, ou FCAW-G não devem ser
feitas em correntes de ar ou vento a menos que a solda
esteja protegida por um abrigo. Tal abrigo deve ser de
forma e material apropriados para reduzir a velocidade
do vento nas proximidades da solda a um máximo de
cinco milhas por hora [oito quilômetros por hora].
5.12.2 Temperatura Mínima Ambiente. A soldagem
nãodeveserfeita
AWS D1.1/D1.1M:2010 5. FABRICAÇÃO
199
(1) quando a temperatura ambiente é mais baixa
que 0°F [–20°C], ou
(2) quando superfícies estão molhadas ou expostas
a chuva, neve, ou
(3) altas velocidades de vento, ou
(4) quando a equipe de soldagem está sujeita a
condições inclementes.
OBSERVAÇÃO: Zero °F (-20 ºC) não significa a
temperatura ambiente do clima, mas a temperatura nas
proximidades imediatas da solda. A temperatura
ambiente no clima pode estar abaixo de 0°F [–20°C],
mas uma estrutura aquecida ou abrigo aquecido ao redor
da área sendo soldada pode manter a temperatura
adjacente à ligação soldada a 0°F [–20°C] ou mais
alta.
5.13 Conformidade com o Projeto
Os tamanhos e comprimentos de soldas não devem ser
menores que aqueles especificados por requisitos de
projeto e desenhos de detalhe, exceto como permitido
na Tabela 6.1. O local de soldas não deve ser alterado
sem aprovação do Engenheiro.
5.14 Tamanhos Mínimos de Solda
de Filete
O tamanho mínimo de solda de filete, exceto para
soldas de filete usadas para reforçar soldas em chanfro,
deve ser como mostrado na Tabela 5.8. O tamanho
mínimo de solda de filete deve aplicar-se em todos os
casos, a menos que desenhos de projeto especifiquem
soldas de um tamanho maior.
5.15 Preparação de Metal Base
Superfícies nas quais o metal de solda será depositado
devem ser lisas, uniformes e livres de rebarbas,
dilacerações, trincas e outras descontinuidades que
afetariam adversamente a qualidade ou resistência da
solda. Superfícies a serem soldadas e
superfícies adjacentes a uma solda devem também
estar livres de crostas soltas ou grossas, escória,
ferrugem, umidade, graxa e outro material estranho
que impediria uma soldagem apropriada ou produziria
fumaças indesejáveis. Óxido de ferro que pode suportar
escovação com escova metálica, um pequeno
revestimento antiferrugem ou composto anti-respingo
pode remanescer com a seguinte exceção: para traves
em estruturas ciclicamente carregadas, todo óxido de
ferro deve ser removido das superfícies em que soldas
flange-a-braçadeira serão feitas.
5.15.1 Descontinuidades Produzidas na Fábrica. Os
limites de aceitabilidade e o reparo de descontinuidades
de superfície de corte observados visualmente devem
estar em conformidade com a Tabela 5.4, na qual o
comprimento da descontinuidade é a dimensão de
extensão visível na superfície de corte do material e a
profundidade é a distância a que a descontinuidade se
estende para o material a partir da superfície de corte.
Todos os reparos soldados devem ser feitos em
conformidade com esse código. Remoção da
descontinuidade pode ser feita de qualquer superfície do
metal base. O comprimento agregado de soldagem não
deve exceder 20% do comprimento da superfície de
placa sendo reparada exceto com aprovação do
Engenheiro.
5.15.1.1 Critérios de Aceitação. Para
descontinuidades maiores que 1 in [25 mm] em
comprimento e profundidade descobertas em superfícies
cortadas, os seguintes procedimentos devem ser
observados:
(1) Quando descontinuidades como W, X, ou Y na
Figura 5.1 são observadas antes de completar a junta,
o tamanho e forma da descontinuidade deve ser
determinado por UT. A área da descontinuidade deve
ser determinada como a área de perda total de reflexão
traseira, quando testada em conformidade com o
procedimento de A 435, Specfication for Straight Beam
Ultrasonic Examination of Steel Plates, da ASTM.
(2) Para aceitação das descontinuidades W, X, ou Y,
a área da descontinuidade (ou a área agregada de
descontinuidades múltiplas) não deve exceder 4% da
área de material de corte (comprimento vezes
largura) com a seguinte exceção: se o comprimento da
descontinuidade, ou a largura agregada de
descontinuidades em qualquer seção transversal,
medida perpendicularmente ao comprimento material
do corte, excede 20% da largura do material de corte, a
área de material de corte de 4% deve ser reduzida pela
porcentagem da porção da largura que excede 20%.
(Por exemplo, se uma descontinuidade é 30% da largura
material de corte, a área de descontinuidade não pode
exceder 3,6% da área material de corte.) A
descontinuidade na superfície de corte do material de
corte deve ser removida a uma profundidade de 1 in [25
mm] além de sua intersecção com a superfície por
cinzelamento, goivagem ou retificação, e bloqueada por
soldagem com um processo de baixo hidrogênio em
camadas que não exceda 1/8 in [3 mm] em espessura
pelo menos para as quatro primeiras camadas.
(3) Reparo não deve ser requerido se uma
descontinuidade Z, que não exceda a área permissível
em 5.15.1.1(2) for descoberta após a junta ter sido
completada e for determinado que ela está 1 in [25 mm]
ou mais distante da face da solda, como medido na
superfície de corte do metal base. Se a descontinuidade
Z está a menos de 1 in [25 mm] de distância da face da
solda, ela deve ser removida para uma distância de 1 in
[25 mm] da zona de fusão da solda por cinzelamento,
goivagem ou retificação. Ela deve ser bloqueada por
soldagem com m processo de baixo hidrogênio em
camadas que não excedam 1/8 in [3 mm] em espessura
pelo menos para as quatro primeiras camadas.
(4) Se a área da descontinuidade W, X, Y, ou Z
excede o permissível em 5.15.1.1(2), o material ou
AWS D1.1/D1.1M:2010 5. FABRICAÇÃO
200
subcomponente de corte deve ser rejeitado e
substituído, ou reparado a critério do Engenheiro.
5.15.1.2 Reparo. No reparo e determinação de
limites de descontinuidades produzidas na fábrica,
visualmente observadas em superfícies de corte, a
quantidade de metal removido deve ser a mínima
necessária para remover a descontinuidade ou para
determinar que os limites da Tabela 5.4 não sejam
excedidos. No entanto, se for requerido reparo de solda,
metal base suficiente deve ser removido para fornecer
acesso à soldagem. Superfícies de corte podem existir
em qualquer ângulo com respeito à direção de
laminação. Todos os reparos soldados de
descontinuidades devem ser feitos por:
(1) Preparação adequada da área de reparo
(2) Soldagem com um processo de baixo
hidrogênio aprovado e observando as provisões
aplicáveis deste código
(3) Retificação da solda completa até ficar lisa e
nivelada (ver 5.24.3.1) com a superfície adjacente para
produzir um acabamento que pareça feito à mão.
OBSERVAÇÃO: Os requisitos de 5.15.1.2 podem não
ser adequados em caso de carga de tensão aplicada
através da espessura do material.
5.15.2 Preparação da Junta. Usinagem, corte
térmico, goivagem (inclusive goivagem e corte de arco
de plasma), cinzelamento, ou retificação podem ser
usados para a preparação da junta, ou remoção de
trabalho ou metal inaceitável, exceto que goivagem por
oxigênio não deve ser usada em aços que são
encomendados como resfriados e temperados ou
normalizados.
5.15.3 Ajuste de Material. Para estruturas ciclicamente
carregadas, material mais grosso que o especificado na
lista a seguir deve ser ajustado se e conforme requerido
para produzir uma aresta de soldagem satisfatória
sempre que uma solda é feita para carregar tensão
calculada:
(1) M aterial de cisalhamento mais espesso que 1/2
in [12 mm]
(2) Arestas laminadas de placas (que não placas de
fábrica universais) mais espessas que 3/8 in [10 mm]
(3) Extremidades de ângulos ou formas laminadas
(que não seções largas de flange) mais espessas que 5/8
in [16 mm]
(4) Placas de fábrica universais ou arestas de
flanges de seções largas de flange mais espessas que 1
in [25 mm]
(5) A preparação para juntas de topo deve estar em
conformidade com os requisitos dos desenhos de
detalhe
5.15.4 Processos de Corte Térmico. Processos de
goivagem e corte de arco elétrico (inclusive goivagem e
corte de arco de plasma) e processos de corte a gás são
reconhecidos sob este código para uso na preparação,
corte ou ajuste de materiais. O uso desses processos
deve estar em conformidade com os requisitos aplicáveis
da Cláusula 5.
5.15.4.1 Outros Processos. Outros processos de
corte térmico e goivagem podem ser usados sob este
código, contanto que o Empreiteiro demonstre ao
Engenheiro a habilidade de usar o processo com
sucesso.
5.15.4.2 Precisão do Perfil. Aço e metal de solda
podem ser cortados termicamente, contanto que seja
assegurada uma superfície lisa e regular, livre de
trincas e entalhes, e contanto que um perfil preciso
seja assegurado pelo uso de um guia mecânico. Para
estruturas ciclicamente carregadas, corte térmico de mão
livre deve ser feito apenas quando aprovado pelo
Engenheiro.
5.15.4.3 Requisitos de Rugosidade. Em corte
térmico, o equipamento deve ser ajustado e manipulado
de tal forma a evitar corte além (dentro) das linhas
prescritas. O padrão de referência para avaliação de
superfícies de corte deve ser o calibrador de rugosidade
da superfície, inclusive C4.1-77, Criteria for Describing
Oxygen-Cut Surfaces and Oxygen Cutting Surface
Roughness Gauge, da AWS. A rugosidade de super-
fícies cortadas termicamente deve ser avaliada pela
comparação visual da superfície de corte com a
rugosidade representada no calibrador de rugosidade. A
rugosidade da superfície não deve ser maior que a
representada pela Amostra 3, exceto que para as extre-
midades de membros não sujeitos a tensão calculada,
ajustes em vigas com a espessura da flange não
excedendo 2 in [50 mm], e para materiais com espe-
ssura acima de 4 in a 8 in [100 mm a 200 mm], a
rugosidade de superfície não deve exceder aquela re-
presentada pela Amostra 2.
5.15.4.4 Limitações de Goivagem ou Entalhe.
Rugosidade excedendo esses valores e entalhes ou
goivagens que não tenham profundidade maior que 3/16
in [5 mm] em outras superfícies satisfatórias devem ser
removidos por usinagem ou retificação. Entalhes ou
goivagens com profundidade excedendo 3/16 in [5 mm]
podem ser reparados por retificação se a área nominal
de seção transversal não for reduzida em mais que 2%.
Superfícies retificadas ou usinadas devem progredir
para a superfície original com uma inclinação que não
exceda um em dez. Superfícies de corte e arestas
adjacentes devem ser deixadas livres de escória. Em
superfícies de corte térmico, entalhes ou goivagens
ocasionais podem, com aprovação do Engenheiro, ser
reparados por soldagem.
5.16 Cantos Reentrantes
Cantos reentrantes de material de corte devem ser
formados para fornecer uma transição gradual com um
raio de não menos que 1 in [25 mm], exceto canos em
material de conexão e ajustes de viga. Superfícies
adjacentes devem atender sem compensação ou corte
além do ponto de tangência. Os cantos reentrantes
podem ser formados por corte térmico, seguido por
AWS D1.1/D1.1M:2010 5. FABRICAÇÃO
201
retificação, se necessário, em conformidade com os
requisitos de superfície de 5.15.4.3.
5.17 Orifícios de Acesso de Solda,
Ajustes de Viga, e Material de
Conexão
Orifícios de acesso de solda, ajustes de viga e superfícies
de corte em materiais de conexão devem ser livres de
entalhes. Ajustes de viga e superfícies de corte em
materiais de conexão devem estar livres de cantos
reentrantes agudos. Orifícios de acesso de solda devem
fornecer uma transição suave que não corta além dos
pontos de tangência entre superfícies adjacentes e devem
atender os requisitos de superfície de 5.15.4.3.
5.17.1 Dimensões de Orifício de Acesso da Solda.
Todos os orifícios de acesso da solda devem ter um
comprimento a partir da preparação da aresta de junta
de solda na superfície interior não menor que 1-1/2
vezes a espessura do material no qual o orifício é feito.
A altura mínima do orifício de acesso deve ser a
espessura do material com o orifício de acesso (tw) mas
não menos que 3/4 in [19 mm], e a altura não precisa
exceder 2 in [50 mm]. O orifício de acesso deve ser
detalhado para fornecer espaço para reforço de solda
conforme necessário e fornecer acesso adequado para
soldagem.
5.17.1.1 Orifícios de Acesso de Solda em Seções
Laminadas. A aresta da braçadeira deve ser inclinada
ou curva a partir da superfície da flange para a
superfície reentrante do orifício de acesso. Nenhum
ângulo do orifício de acesso da solda deve ter um raio
menor que 3/8 in [9 mm].
5.17.1.2 Orifícios de Acesso de Solda em Seções
Construídas. Para seções construídas em que o orifício
de acesso de solda é feito depois que a seção foi soldada, a
aresta da braçadeira deve ser inclinada ou curva a partir
da superfície da flange para a superfície reentrante do
orifício de acesso. Nenhum ângulo do orifício de acesso
de solda deve ter um raio menor que 3/8 in [9 mm].
Para seções construídas em que o orifício de acesso é
feito antes que a seção seja soldada, o orifício de acesso
pode terminar perpendicular à flange, contanto que a
solda seja terminada a uma distância pelo menos igual
ao tamanho da solda distante do orifício de acesso.
Soldas de filete não devem ser retornadas através do
orifício de acesso (ver Figura 5.2).
5.17.2 Formas Galvanizadas. Orifícios de acesso de
solda e ajustes de viga em formas que serão
galvanizadas devem ser retificados a metal brilhante. Se
a porção de transição curva dos orifícios de acesso de
solda e ajustes de viga é formada por orifícios pré-
perfurados ou serrados, essa porção do orifício de
acesso ou ajuste não precisa ser retificada.
5.17.3 Formas Pesadas. Para formas laminadas com
uma espessura de flange que exceda 2 in [50 mm], e
seções soldadas com uma espessura de placa que exceda
2 in [50 mm] nas quais a superfície curva do orifício de
acesso é cortada termicamente, um pré-aquecimento
mínimo de 150°F [66°C] estendo-se 3 in [75 mm] da
área em que a curva será cortada deve ser aplicado antes
do corte térmico. Para seções pesadas, as superfícies
termicamente cortadas de ajustes de viga e orifícios de
acesso de solda devem ser retificados a metal brilhante
e inspecionados por métodos MT ou PT antes da
deposição de soldas de emenda. Orifícios de acesso de
solda e ajustes de viga em outras formas não precisam
ser retificados ou inspecionados por métodos PT ou
MT.
5.18 Soldas Provisórias e Soldas
para Auxiliar a Construção
5.18.1 Requisitos de Gerais
(1) Soldas provisórias e soldas para auxiliar a
construção devem ser feitas com uma WPS qualificada
ou pré-qualificada e por pessoal qualificado.
(2) Soldas provisórias que não estão incorporadas
em soldas finais e soldas para auxiliar a construção que
não são removidas devem atender aos requisitos de
inspeção visual antes que um membro seja aceito.
5.18.2 Exclusões. Soldas provisórias e soldas para
auxiliar a construção são permitidas exceto quando:
(1) Em zonas de tensão de estruturas ciclicamente
carregadas, não deve haver soldas provisórias não
incorporadas à solda final exceto como permitido por
2.16.2, nem soldas de auxílio à construção. Locais que
estejam a mais de 1/6 da profundidade da braçadeira de
flanges de tensão de vigas ou traves são considerados
fora da zona de tensão.
(2) Em membros feitos de aço resfriado e
temperado com limite de escoamento específico maior
que 70 ksi [485 MPa], soldas provisórias fora da solda
final e soldas de auxílio à construção devem requerer
aprovação de Engenheiro.
5.18.3 Remoção. Em locais outros que 5.18.2, soldas
provisórias e soldas de auxílio à construção não
incorporadas a soldas finais devem ser removidas
quando requerido pelo Engenheiro.
5.18.4 Requisitos Adicionais de Solda Provisória
(1) Soldas provisórias incorporadas a soldas finais
devem ser feitas com eletrodos que atendam aos
requisitos das soldas finais. Essas soldas devem ser
limpas antes da incorporação.
(2) Soldas provisórias de passe múltiplo devem
ter extremidades cascateadas ou ser de outra forma
preparadas para incorporação à solda final.
(3) Soldas provisórias incorporadas a soldas finais
que sejam qualificadas com tenacidade ao entalhe, ou
que seja requerido que sejam feitas com metal de adição
classificado com tenacidade ao entalhe, devem ser feitas
com metais de adição compatíveis.
AWS D1.1/D1.1M:2010 5. FABRICAÇÃO
202
5.18.5 Requisitos Adicionais para Soldas
Provisórias Incorporadas a Soldas SAW. O seguinte
deve aplicar-se em acréscimo aos requisitos de 5.18.4.
(1) Pré-aquecimento não é requerido para soldas
provisórias de passe único refundidas para soldas SAW
contínuas. Isso é uma exceção aos requisitos de
qualificação de 5.18.1.
(2) Soldas provisórias de f ilete não devem
exceder 3/8 in [10 mm] e não devem produzir
alterações objetáveis na aparência da superfície da
solda.
(3) Soldas provisórias nas raízes de juntas que
requeiram penetração de raiz específica não devem
resultar em penetração diminuída.
(4) Soldas provisórias que não estejam em
conformidade com os requisitos de (2) e (3) devem ser
removidas ou reduzidas em tamanho por quaisquer
meios adequados antes da soldagem.
(5) Soldas provisórias na raiz de uma junta com
reforço de aço com espessura menor que 5/16 in [8 mm]
devem ser removidas ou tornar-se contínuas para todo o
comprimento da junta usando SMAW com eletrodos de
baixo hidrogênio, GMAW, ou FCAW-G.
5.19 Abaulamento em Membros
Construídos
5.19.1 Abaulamento. Arestas de viga construída e
braçadeiras de trave devem ser cortadas para o
abaulamento prescrito com compensação adequada para
retração devida a corte e soldagem. No entanto, a
variação moderada da tolerância de abaulamento
especificada pode ser corrigida por uma cuidadosa
aplicação de calor.
5.19.2 Correção. Correções de erros em abaulamento
de aço resfriado e temperado devem requerer a
aprovação do Engenheiro.
5.20 Emendas em Estruturas
Ciclicamente Carregadas
Emendas entre seções de vigas laminadas ou traves
construídas devem ser feitas preferivelmente em um
plano único transversal. Emendas de oficina de
braçadeiras e flanges em traves construídas, feitas antes
que as braçadeiras e flanges sejam anexadas uma à
outra, podem estar localizadas em um plano único
transversal ou múltiplos planos transversais, mas as
provisões de especificações gerais de tensão de fadiga
devem aplicar-se.
5.21 Controle de Distorção e Retração
5.21.1 Procedimento e Sequência. Ao montar e juntar
partes de uma estrutura ou de membros construídos, e
ao soldar partes de reforço a membros, o procedimento
e sequência devem ser tais que irão minimizar distorção
e retração.
5.21.2 Sequenciamento. Tanto quanto praticável,
todas as soldas devem ser feitas em uma sequência que
irá equilibrar o calor aplicado de soldagem enquanto a
soldagem progride.
5.21.3 Responsabilidade do Empreiteiro. Em
membros ou estruturas em que distorção ou retração
excessivas poderiam ser esperadas, o Empreiteiro deve
preparar uma sequência de soldagem por escrito para
aquele membro ou estrutura que atenda aos requisitos
de qualidade especificados. A sequência de soldagem e
programa de controle de distorção devem ser
submetidos ao Engenheiro, para informação e
comentário, antes do início da soldagem no membro ou
estrutura no qual é provável que a retração ou distorção
afete a adequação do membro ou estrutura.
5.21.4 Progressão de Solda. A direção da progressão
geral em soldagem em um membro deve ser a partir de
pontos em que as partes estão relativamente fixas em
posição com respeito uma à outra em direção a pontos
tendo uma liberdade relativa maior de movimento.
5.21.5 Retenção Minimizada. Em montagens, juntas
das quais se espera retração significante deveriam
normalmente ser soldadas antes das juntas das quais se
espera menos retração. Elas também deveriam ser
soldada com o mínimo possível de retenção.
5.21.6 E m e n d a s d e Submontagem. Todas as
emendas de oficina soldadas em cada parte de
componente de uma viga de um membro construído ou
coberto devem ser feitas antes que a parte do componente
seja soldado a outras partes de componente do membro.
Traves longas ou seções de traves podem ser
feitas pela soldagem de submontagens, cada
uma em conformidade com 5.21.6. Quando fazendo
essas emendas de submontagem, seja na oficina ou em
campo, a sequência de soldagem deveria ser
razoavelmente equilibrada entre as soldas de braçadeira
e flange assim como entre os eixos maiores e menores
do membro.
5.21.7 L i mi t a ç õ e s d e Temperatura. Ao fazer
soldas sob condições externas severas de retenção de
retração, uma vez que a soldagem tenha iniciado, não
deve ser permitido que a junta resfrie abaixo do pré-
aquecimento mínimo especificado até que a junta esteja
completa, ou solda suficiente tenha sido depositada para
assegurar que não haja trincas.
5.22 Tolerância de Dimensões de
Juntas
5.22.1 Montagem de Solda de Filete. As partes a
serem anexadas por soldas de filete devem ser
posicionadas em contato tão próximo quanto
possível. A abertura de raiz não deve exceder 3/16 in
[5 mm], exceto em casos envolvendo formas ou placas
com espessura de 3 in [75 mm] ou maior se, após
endireitamento e na montagem, a abertura de raiz não
AWS D1.1/D1.1M:2010 5. FABRICAÇÃO
203
pode ser suficientemente fechada para atender a essa
tolerância. Em tais casos, uma abertura de raiz máxima
de 5/16 in [8 mm] pode ser usada, contanto que um
reforço adequado seja usado. O reforço pode ser de
fluxo, fita de vidro, pó de ferro ou materiais similares,
ou soldas usando um processo de baixo hidrogênio
compatível com o metal de adição depositado. Se a
separação for maior que 1/16 in [2 mm], as pernas da
solda de filete devem ser aumentadas pela quantia de
abertura de raiz, ou o Empreiteiro deve demonstrar que
a garganta efetiva requerida foi obtida.
5.22.1.1 Superfície de Contato. A separação entre
superfícies de contato de soldas de tampão, e de juntas
de topo assentadas em um reforço, não deve exceder
1/16 in [2 mm]. Quando irregularidades em formas
laminadas ocorrem depois do endireitamento não
permitir contato dentro dos limites acima, o
procedimento necessário para trazer o material para
dentro desses limites deve estar sujeito à aprovação do
Engenheiro. O uso de placas de enchimento deve ser
proibido exceto quando especificado nos desenhos ou
especialmente aprovado pelo Engenheiro e feito em
conformidade com 2.13.
5.22.2 Montagem de Solda em Chanfro PJP. As
partes a serem anexadas por soldas em chanfro PJP
paralelas ao comprimento do membro devem ser
situadas em contato tão próximo quanto possível. A
abertura de raiz entre as partes n ã o d eve exceder 3/16
in [5 mm] exceto em casos que envolvem placas ou
formas laminadas de espessura de 3 in [75 mm] ou
maior se, após endireitamento e na montagem, a abertura
de raiz não pode ser suficientemente fechada para atender
essa tolerância. Em tais casos, uma abertura máxima de
raiz de 5/16 in [8 mm] pode ser usada, contanto que
reforço adequado seja usado e a solda final atenda os
requisitos para tamanho de solda. Tolerâncias para juntas
de rolamento devem estar em conformidade com as
especificações de contrato aplicáveis.
5.22.3 Alinhamento de Junta de Topo. Partes a
serem anexadas a juntas de topo devem ser
cuidadosamente alinhadas. Quando as partes são
efetivamente restringidas quanto à flexão devida à
excentricidade em alinhamento, a compensação do
alinhamento teórico não deve exceder 10% da espessura
da parte mais fina anexada, ou 1/8 in [3 mm], o que for
menor. Ao corrigir desalinhamentos em tais casos, as
partes não devem ser levadas a uma inclinação
maior que 1/2 in [12 mm] em 12 in [300 mm].
Medidas de compensação devem ser baseadas na linha
de centro de partes, a menos que mostrado de
outra forma nos desenhos.
5.22.3.1 Alinhamento de Solda Periférico
(Tubular). Ao encostar partes a serem anexadas por
soldas periféricas, elas devem estar cuidadosamente
alinhadas. Duas soldas periféricas não devem estar
localizadas mais perto que um diâmetro de cano ou 3
pés [1 m], o que for menor. Não deve haver mais que
duas soldas periféricas em qualquer intervalo de cano
de 10 pés [3 m], exceto quando assim acordado pelo
Proprietário e Empreiteiro. A compensação radial de
arestas encostadas de costuras periféricas não deve
exceder 0,2t (onde t é a espessura do membro mais fino)
e o máximo permissível deve ser 1/4 in [6 mm],
contanto que qualquer compensação que exceda 1/8 in
[3 mm] seja soldada a partir de ambos os lados. No
entanto, com a aprovação do Engenheiro, uma área
localizada por costura periférica pode ser compensada
até 0,3t com um máximo de 3/8 in [10 mm], contanto
que a área localizada esteja abaixo de 8t em
comprimento. Metal de adição deve ser acrescentado a
essa região para fornecer uma transição 4 para 1 e pode
ser acrescentado em conjunção com a feitura da solda.
Compensações que excedam isso devem ser corrigidas
como fornecido em 5.22.3. Costuras de solda
longitudinais de seções adjacentes devem ser
escalonadas um mínimo de 90°, a menos que
espaçamento mais próximo seja concordado pelo
Proprietário e construtor.
5.22.4 Dimensões de Chanfro
5.22.4.1 Variações em Seções Transversais Não
Tubulares. Com a exclusão de ESW e EGW, e com a
exceção de 5.22.4.3 para aberturas de raiz que excedam
aquelas permitidas na Figura 5.3, as dimensões de seção
transversal das juntas soldadas em chanfro que variam
daquelas mostradas nos desenhos de detalhe por mais
que essas tolerâncias devem ser submetidas à consulta
do Engenheiro para aprovação ou correção.
5.22.4.2 Variações em Seções Transversais
Tubulares. Variação em dimensões de seção transversal
de juntas soldadas em chanfro, com relação àquelas
mostradas em desenhos detalhados, devem estar em
conformidade com 5.22.4.1, exceto
(1) Tolerâncias para conexões em T-, Y-, e K-
estão inclusas nas faixas dadas em 3.13.5.
(2) As tolerâncias mostradas na Tabela 5.5
aplicam-se a soldas em chanfro CJP tubulares em juntas
de topo, feitas a partir de apenas um lado, sem reforço.
5.22.4.3 Correção. Aberturas de raiz maiores que
aquelas permitidas em 5.22.4.1, mas não maiores que
duas vezes a espessura da parte mais fina ou 3/4 in [20
mm], o que for menor, podem ser corrigidas por
soldagem a dimensões aceitáveis antes de anexar as
partes por soldagem.
5.22.4.4 Aprovação do Engenheiro. Aberturas de
raiz maiores que as permitidas por 5.22.4.3 podem ser
corrigidas por soldagem apenas com a aprovação do
Engenheiro.
5.22.5 Chanfros Goivados. Chanfros produzidos por
goivagem devem estar em conformidade substancial
com as dimensões de perfil de chanfro especificadas na
Figura 3.3 e 3.4, e provisões de 3.12.3 e 3.13.1. Acesso
adequado à raiz deve ser mantido.
5.22.6 Métodos de Alinhamento. Membros a serem
soldados devem ser colocados no alinhamento correto
e mantidos em posição por parafusos, grampos, cunhas,
cabos de ancoragem, escoras e outros dispositivos
adequados, ou por soldas provisórias até que a
soldagem esteja completa. O uso de separadores e
AWS D1.1/D1.1M:2010 5. FABRICAÇÃO
204
suportes é recomendado quando praticável.
Compensações adequadas devem ser feitas para
deformação e retração.
5.23 Tolerância Dimensional de
Membros Estruturais Solda-
dos
As dimensões de membros estruturais soldados deve
estar em conformidade com as tolerâncias de (1) as
especificações gerais regulando o trabalho, e (2) as
tolerâncias dimensionais especiais em 5.23.1 a 5.23.12.
(Observe que uma coluna tubular é interpretada como
um membro de compressão tubular.)
5.23.1 Linearidade de Colunas e Estruturas. Para
colunas e membros estruturais primários soldados, a
despeito de seção transversal, a variação máxima em
linearidade deve ser
Comprimentos de menos de 30 pés [9 m]:
1 mm × Nº de metros do comprimento total
Comprimentos de 30 pés [9 m] a 45 pés [15 m] = 3/8 in
[10 mm]
Comprimentos acima de 45 pés [15 m]:
5.23.2 Linearidade de Viga e Trave (Sem
Abaulamento Especificado). Para vigas ou traves
soldadas, a despeito de seção transversal, onde não há
abaulamento especificado, a variação máxima de
linearidade deve ser
1 mm × Nº de metros do comprimento total
5.23.3 Abaulamento de Viga e Trave (Trave Típica).
Para vigas ou traves soldadas cuja flange de topo não
esteja embutida em concreto sem uma mísula de
concreto projetada, a despeito de seção transversal, a
variação máxima de abaulamento requerido na
montagem da oficina (para orifícios de perfuração para
emendas de campo ou preparando emendas de campo
soldadas) deve ser
Em meio vão, –0, +1-1/2 in [40 mm] para
intervalos ≥ pés
[30 m]
–0, + 3/4 in [20 mm] para intervalos
< 100 pés
[30 m]
em suportes, 0 para suportes de extremidade
± 1/8 [3 mm] para suportes
interiores
Em pontos intermediários, -0,
( ) ( )
onde
a = distância em pés (metros) do ponto de
inspeção ao suporte mais próximo
S = comprimento do intervalo em pés (metros)
b = 1- /2 in 4 mm para intervalos ≥ pés
[30 m]
b = 3/4 in [20 mm] para intervalos < 100 pés [30
m]
5.23.4 Abaulamento de Viga e Trave (sem Mísula de
Concreto Projetada). Para membros cuja flange de
topo está embutida em concreto sem uma mísula de
concreto projetada, a variação máxima de abaulamento
requerido na montagem de oficina (para orifícios de
perfuração para emendas de campo ou preparando
emendas de campo soldadas) deve ser
a meio vão, ± 3/4 in [20 mm] para intervalos ≥ 100
pés
[30 m]
± 3/8 in [10 mm] para intervalos < 100
pés
[30 m]
em suportes, 0 para suportes de extremidade
± 1/8 in [3 mm] para suportes interiores
Em pontos intermediários,
( ) ( )
onde a e S são como definido acima
b = 3/4 in [20 mm] para intervalos ≥ 100 pés [30 m]
b = 3/8 in [10 mm] para intervalos < 100 pés [30 m]
Ver Tabela 5.7 para valores tabulados.
A despeito de como o abaulamento é mostrado nos
desenhos de detalhe, a convenção de sinal para a
variação permissível é mais (+) acima e menos (–)
abaixo da forma de abaulamento detalhada. Essas
provisões também se aplicam a um membro individual
quando não são requeridas emendas de campo ou
montagem de oficina. Medidas de abaulamento devem
ser feitas na condição sem carga.
5.23.5 Varredura de Viga e Trave. A variação
máxima de linearidade ou varredura específica no ponto
médio deve ser
1 mm × No. de metros do comprimento total
Contanto que o membro tenha flexibilidade lateral
suficiente para permitir que sejam anexados
diafragmas, armações transversais, apoio lateral, etc.,
sem danificar o membro estrutural ou seus anexos.
5.23.6 Variação em Aplainamento de Braçadeira
5.23.6.1 Medidas. Variações de aplainamento de
braçadeiras de trave devem ser determinadas através da
medida da compensação da linha de centro real da
braçadeira à aresta reta cujo comprimento é maior que
AWS D1.1/D1.1M:2010 5. FABRICAÇÃO
205
a menor dimensão do painel e colocada em um plano
paralelo ao plano nominal da braçadeira. As medidas
devem ser tomadas antes da ereção (ver Comentário).
5.23.6.2 Estruturas Não Tubulares
Estaticamente Carregadas. Variações de
aplainamento de braçadeiras que tenham uma
profundidade, D, uma espessura, t, em painéis presos
por reforços ou flanges, ou ambos, cuja menor
dimensão de painel é d não devem exceder o seguinte:
Reforços intermediários em ambos os lados da
braçadeira
onde D/t < 150, variação máxima = d/100
onde D/t ≥ 150, variação máxima = d/80
Reforços intermediários em apenas um lado da
braçadeira
onde D/t < 100, variação máxima = d/100
onde D/t ≥ 100, variação máxima = d/67
Sem reforços intermediários
onde D/t ≥ 100, variação máxima = D/150
(Ver Anexo D para tabulação.)
5.23.6.3 Estruturas Não Tubulares Ciclicamente
Carregadas. Variação de aplainamento de braçadeiras
que tenham uma profundidade, D, e uma espessura, t,
em painéis presos por reforços ou flanges, ou ambos,
cuja menor dimensão de painel é d não deve exceder o
seguinte:
Reforços intermediários em ambos os lados da
braçadeira
Traves interiores—
onde D/t < 150—variação máxima = d/115
onde D/t ≥ 150—variação máxima = d/92
Traves Frontais—
onde D/t < 150—variação máxima = d/130
onde D/t ≥ 150—variação máxima = d/105
Reforços intermediários em apenas um lado da
braçadeira
Traves interiores—
onde D/t < 100—variação máxima = d/100
onde D/t ≥ 100—variação máxima = d/67
Traves Frontais—
onde D/t < 100— variação máxima= d/120
onde D/t ≥ 100—variação máxima = d/80
Sem reforços intermediários—variação máxima = D/150
(Ver Anexo E para tabulação.)
5.23.6.4 Distorção Excessiva. Distorções de
braçadeira de duas vezes as tolerâncias permissíveis de
5.23.6.2 ou 5.23.6.3 devem ser satisfatórias quando
ocorrem na extremidade de uma trave que tenha sido
perfurada, ou subperfurada e alargada; ou durante a
montagem, ou para uma amostra para uma emenda de
campo parafusada; contanto que, quando as placas de
emenda são parafusadas, a braçadeira assuma as
tolerâncias de dimensão apropriadas.
5.23.6.5 Consideração Arquitetônica. Se
considerações arquitetônicas requerem tolerâncias mais
restritivas que as descritas em 5.23.6.2 ou 5.23.6.3,
referência específica deve ser incluída nos documentos
de proposta.
5.23.7 Variação Entre Linhas de Centro de Flange e
Braçadeiras. Para membros H ou I construídos, a
variação máxima entre a linha de centro da braçadeira e
a linha de centro da flange na superfície de contato não
deve exceder 1/4 in [6 mm].
5.23.8 Deformação e Inclinação da Flange. Para vigas
ou traves soldadas, a deformação e inclinação
combinadas da flange devem ser determinadas pela
medida da compensação na extremidade da flange a
partir de uma linha normal ao plano da braçadeira
através da intersecção da linha de centro da braçadeira
com a superfície externa da placa de flange. Essa
compensação não deve exceder 1% da largura total da
flange ou 1/4 in [6 mm], o que for maior, exceto que
juntas de topo soldadas de partes adjacentes devem
preencher os requisitos de 5.22.3.
5.23.9 Variação de Profundidade. Para vigas e traves
soldadas, a variação máxima permissível de profundidade
específica medida na linha de centro da braçadeira deve
ser
Para profundidades até 36 in [1 m] incl. ± 1/8 in [3 mm]
Para profundidades acima de 36 in [1 m] até
72 in [2 m] incl. ± 3/16 in [5 mm]
Para profundidades acima de 72 in [2 m] + 5/16 in [8 mm]
– 3/16 in [5 mm]
5.23.10 Rolamento em Pontos de Carga. As
extremidades de rolamento de reforços de rolamento
devem estar em ângulo reto com a braçadeira e devem
ter pelo menos 75% da área de seção transversal do
rolamento de reforço em contato com a superfície
interna das flanges. A superfície externa das flanges
quando rolamento contra uma base ou assento de aço
deve ajustar-se em 0,010 in [0,25 mm] para 75% da
área projetada da braçadeira e reforços, e não mais que
1/32 in [1 mm] para os 25% remanescentes da área
projetada. Traves sem reforços devem suportar na área
projetada da braçadeira na superfície externa da flange
em 0,010 in [0,25 mm] e o ângulo incluído entre
braçadeira e flange não deve exceder 90° no
comprimento do rolamento (ver Comentário).
5.23.11 Tolerância em Reforços
5.23.11.1 Ajuste de Reforços Intermediários.
Quando um ajuste justo de reforços intermediários é
especificado, ele deve ser definido como permitindo
uma folga de até 1/16 in [2 mm] entre reforço e flange.
5.23.11.2 Linearidade de Reforços Interme-
diários. A variação fora de linearidade de reforços
intermediários não deve exceder 1/2 in [12 mm] para
traves com profundidade de até 6 pés [1,8 m], e 3/4 in
[20 mm] para traves com profundidade acima de 6 pés
[1,8 m], com a devida consideração para membros que
se encaixam nelas.
AWS D1.1/D1.1M:2010 5. FABRICAÇÃO
206
5.23.11.3 Linearidade e Local de Reforços de
Rolamento. A variação fora de linearidade de reforços
de rolamento não deve exceder 1/4 in [6 mm] para
profundidade até 6 p é s [1,8 m] ou 1/2 in [12 mm]
para profundidade acima de 6 pés [1,8 m]. A linha de
centro real do reforço deve ficar dentro da espessura do
reforço como medido a partir do local da linha de centro
teórica.
5.23.12 Outras Tolerâncias Dimensionais. Torção de
membros de caixa e outras tolerâncias dimensionais de
membros não abordadas por 5.23 devem ser
individualmente determinados e concordados
mutuamente pelo Empreiteiro e pelo Proprietário com a
consideração apropriada pelos requisitos de ereção.
5.24 Perfis de Solda
Todas as soldas devem atender os critérios de aceitação
da Tabela 6.1 e devem estar livres de trincas,
sobreposições e descontinuidades de perfil inaceitáveis
exibidas na Figura 5.4, Tabela 5.9 e Tabela 5.10,
exceto quando permitido de outra forma em 5.24.1,
5.24.2, e 5.24.3.
5.24.1 Soldas de Filete. As faces de soldas de filete
podem ser levemente convexas, planas ou levemente
côncavas como mostrado na Figura 5.4 e como
permitido pela Tabela 6.1.
5.24.2 Exceção para Soldas de Filete Descontínuas.
Exceto para mordedura, como permitido pelo código,
os requisitos de perfil da Figura 5.4 não devem aplicar-
se às extremidades de soldas de filete descontínuas fora
de seu tamanho efetivo.
5.24.3 Soldas em Chanfro. Reforço de soldas em
chanfro deve estar em conformidade com a Tabela 5.9,
Tabela 5.10 e com as provisões abaixo. Soldas devem
ter uma transição gradual para o plano das superfícies
do metal base.
5.24.3.1 Superfícies Jateadas. Soldas que
requerem jateamento devem ser acabadas de forma a
não reduzir a espessura do metal base ou metal de solda
mais fino em mais que 1/32 in [1 mm]. Reforço
remanescente não deve exceder 1/32 in [1 mm] em altura
e deve misturar-se suavemente nas superfícies do metal
base com áreas de transição livres de mordedura. No
entanto, todo reforço deve ser removido quando a solda
forma parte de uma superfície de contato.
5.24.3.2 Métodos e Valores de Acabamento.
Quando acabamento de superfície é requerido, valores
de rugosidade (ver ASME B46.1) não devem exceder
250 micropolegadas [6,3 micrometros]. Cinzelamento e
goivagem podem ser usados contanto que sejam
seguidos por retificação ou usinagem. Para estruturas
ciclicamente carregadas, o acabamento deve ser
paralelo à direção de tensão primária, exceto rugosidade
final de 125 micropolegadas [3,2 micrometros] ou menos
podem ser acabados em qualquer direção.
5.24.4 Barras de Prateleira. Barras de prateleira
devem estar em conformidade com os requisitos de
5.10.1 a 5.10.5. Barras de prateleira podem ser deixadas
no lugar apenas para membros estaticamente
carregados.
5.25 Técnica para Soldas de
Tampão (Plug e Slot)
5.25.1 Soldas de Tampão (Plug). A técnica usada
para fazer soldas de tampão (plug) quando usando
processos SMAW, GMAW (exceto GMAW-S), e FCAW
deve ser como segue:
5.25.1.1 Posição Plana. Para soldas a serem feitas
na posição plana, cada passe deve ser depositado ao
redor da raiz da junta e então depositado ao longo de
um caminho espiral para o centro do orifício, fundindo
e depositando uma camada de metal de solda na raiz e
topo da junta. O arco deve então ser movido para a
periferia do orifício e o procedimento repetido,
fundindo e depositando camadas sucessivas para
preencher o orifício até a profundidade requerida. A
escória cobrindo o metal de solda deveria ser mantida
fundida até que a solda esteja acabada. Se o arco está
quebrado ou é permitido que a escória resfrie, a escória
precisa ser completamente removida antes de reiniciar a
solda.
5.25.1.2 Posição Vertical. Para soldas a serem
feitas na posição vertical, o arco é iniciado na raiz da
junta no lado mais baixo do orifício e é levado acima,
fundindo-se com a face da placa interior e ao lado do
orifício. O arco é interrompido no topo do orifício, a
escória é limpa e o processo é repetido no lado oposto
do orifício. Depois de limpar a escória da solda, outras
camadas deveriam ser depositadas de forma similar para
preencher o orifício até a profundidade requerida.
5.25.1.3 Posição Suspensa. Para soldas a serem
feitas na posição suspensa, o procedimento é o mesmo
que para a posição plana, exceto que deveria ser
permitido que a escória resfrie e deveria ser
completamente removida após depositar cada esfera
sucessiva até que o orifício esteja preenchido até a
profundidade requerida.
5.25.2 Soldas de Tampão (Slot). Soldas de tampão
(slot) devem ser feitas usando técnicas similares àquelas
especificadas em 5.25.1 para soldas de tampão (plug),
exceto que se o comprimento da ranhura excede três
vezes a largura, ou se a ranhura estende-se à aresta da
parte, os requisitos técnicos de 5.25.1.3 devem aplicar-
se.
5.26 Reparos
A remoção de metal de solda ou porções do metal base
pode ser feita por usinagem, retificação,
cinzelamento ou goivagem. Ela deve ser feita de tal
forma que o metal de solda ou metal base adjacente
não seja entalhado ou goivado. Goivagem por oxigênio
não deve ser usada em aço resfriado ou temperado.
Porções inaceitáveis da solda devem ser removidas sem
remoção substancial d o m e t a l base.
AWS D1.1/D1.1M:2010 5. FABRICAÇÃO
207
As superfícies devem ser completamente limpas antes
da soldagem. O metal de solda deve ser depositado para
compensar qualquer deficiência em tamanho.
5.26.1 Opções do Empreiteiro. O Empreiteiro tem a
opção de ou reparar uma solda inaceitável ou remover e
substituir a solda toda, exceto como modificado por
5.26.3. A solda reparada ou substituída deve ser
retestada pelo método originalmente usado, e os
mesmos critérios de aceitação de técnica e qualidade
devem ser aplicados. Se o Empreiteiro escolher reparar
a solda, ela deve ser corrigida como segue:
5.26.1.1 Sobreposição, Convexidade Excessiva ou
Reforço Excessivo. Metal de solda excessivo deve ser
removido.
5.26.1.2 Concavidade Excessiva de Solda ou
Cratera, Soldas Abaixo do Tamanho, Mordedura. As
superfícies devem ser preparadas (ver 5.30) e metal de
solda depositado adicional.
5.26.1.3 Fusão Incompleta, Porosidade
Excessiva de Solda ou Inclusões de Escória. Porções
inaceitáveis devem ser removidas (ver 5.26) e soldadas
novamente.
5.26.1.4 Trincas em Metal Base ou de Solda. A
extensão da trinca deve ser averiguada pelo uso de
ácido macrográfico, MT, PT, ou outros meios
igualmente positivos; a espessura e metal estável 2 in
[50 mm] além de cada extremidade da trinca devem ser
removidos, e soldados novamente.
5.26.2 Limitações Localizadas de Temperatura de
Reparo Térmico. Membros distorcidos por soldagem
devem ser endireitados por meios mecânicos ou por
aplicação de uma quantidade limitada de calor
localizado. A temperatura de áreas aquecidas medidas
por métodos aprovados não deve exceder 1100°F
[600°C] para aço resfriado e temperado, ou 1200°F
[650°C] para outros aços. A parte a ser aquecida para
endireitamento deve ser substancialmente livre de
tensão e de forces externas, exceto aquelas tensões que
resultam de método de endireitamento mecânico usado
em conjunção com a aplicação de calor.
5.26.3 Aprovação do Engenheiro. Aprovação
anterior do Engenheiro deve ser obtida para reparos em
metal base (além daqueles requeridos por 5.15), reparo
de trincas importantes ou trincas retardadas, reparos
para ESW e EGW com defeitos internos, ou para um
projeto revisado que compense as deficiências. O
Engenheiro deve ser notificado antes que membros
soldados sejam cortados e separados.
5.26.4 Inacessibilidade de Soldas Inaceitáveis. Se,
após uma solda inaceitável ser feita, é realizado trabalho
que torna a solda inacessível ou cria novas condições
que tornam a correção da solda inaceitável perigosa ou
ineficaz, então as condições originais devem ser
restauradas pela remoção das soldas ou membros, ou
ambos, antes que as correções sejam feitas. Se isso não
for feito, o defeito deve ser compensado por trabalho
adicional realizado em conformidade com um projeto
revisado aprovado.
5.26.5 Restauração Soldada de Metal Base Metal
com Orifícios Deslocados. Exceto quando restauração
por soldagem é necessária por razões estruturais ou
outras, orifícios deslocados perfurados podem ser
deixados abertos ou preenchidos com parafusos.
Quando metal base com orifícios deslocados é
restaurado por soldagem, os seguintes requisitos se
aplicam:
(1) Metal base não sujeito a tensão de tração
cíclica pode ser restaurado por soldagem, contanto que
o Empreiteiro prepare e siga uma WPS de reparo. A
estabilidade da solda de reparo deve ser verificada por
NDT apropriado, quando tais testes são especificados
em documentos de contrato para soldas em chanfro
sujeitas a tensão ou compressão.
(2) Metal base sujeito a tensão de tração cíclica
pode ser restaurado por soldagem contanto que:
(a) O Engenheiro aprova reparo por soldagem e
o reparo WPS.
(b) A WPS de reparo é seguida no trabalho e a
estabilidade do metal base restaurado é verificada
pelo(s) método(s) NDT especificado(s) nos documentos
de contrato para exame de soldas em chanfro de tensão
ou como aprovado pelo Engenheiro.
(3) Em acréscimo aos requisitos de (1) e (2),
quando orifícios em metais base resfriados e
temperados são restaurados por soldagem:
(a) Meta l d e ad iç ão a propriado, aporte de
calor e PWHT (quando PWHT é requerido) devem ser
usados.
(b) Soldas de amostra devem ser feitas usando a
WPS de reparo.
(c) RT de soldas de amostra deve verificar que a
estabilidade da solda está em conformidade com os
requisitos de 6.12.2.1.
(d) Um teste de tensão de seção reduzida (metal de
solda); dois testes de flexão lateral (metal de solda); e
três testes CVN de HAZ (área de grão grosso)
removidos de soldas de amostra devem ser usados para
demonstrar que propriedades mecânicas da área
reparada estejam em conformidade com os requisitos
específicos do metal base (ver Cláusula 4, Parte D para
requisitos de teste CVN).
(4) Superfícies de solda devem ser acabadas como
especificado em 5.24.3.1.
5.27 Martelamento
Martelamento pode ser usado em camadas de solda
intermediárias para controle de tensões de retração em
soldas espessas para prevenir trinca ou distorção, ou
ambos. Nenhum martelamento deve ser feito na raiz ou
camada de superfície da solda ou do metal base metal
nas arestas da solda exceto como fornecido em
2.20.6.6(3). Deveria ser tomado cuidado para prevenir
sobreposição ou trinca da solda ou metal base.
5.27.1 Ferramentas. O uso de martelos de escória
manuais, cinzéis e ferramentas leves de vibração para a
AWS D1.1/D1.1M:2010 5. FABRICAÇÃO
208
remoção de escória e respingo é permitido e não deve
ser considerado martelamento.
5.28 Calafetagem
Calafetagem deve ser definida como uma deformação
plástica da solda e superfícies de metal base por meios
mecânicos para vedar ou obscurecer
descontinuidades. Calafetagem deve ser proibida para
metais base com limite de escoamento mínimo
especificado maior que 50 ksi [345 MPa].
Para metais base com limite de escoamento mínimo
específico de 50 ksi [345 MPa] ou menos, calafetagem
pode ser usada, contanto que:
(1) todas as inspeções tenham sido concluídas e
aceitas
(2) calafetagem é necessária para prevenir falhas de
revestimento
(3) a técnica e limitações de calafetagem sejam
aprovadas pelo Engenheiro
5.29 Aberturas de Arco
Aberturas de arco fora da área de soldas permanentes
deveriam ser evitadas em qualquer metal base. Trincas
ou imperfeições causadas por aberturas de arco devem
ser retificadas a um contorno suave e verificados para
assegurar a estabilidade.
5.30 Limpeza de Solda
5.30.1 Limpeza Durante o Processo. Antes de soldar
sobre metal previamente depositado, toda escória deve
ser removida e a solda e metal base adjacente devem ser
limpos por escovação ou outros meios adequados. Esse
requisito deve aplicar-se não apenas a camadas
sucessivas, mas também a esferas sucessivas e à área de
cratera quando a soldagem é recomeçada após qualquer
interrupção. Ele não deve, no entanto, restringir a
soldagem de soldas de tampão em conformidade com
5.25.
5.30.2 Limpeza de Soldas Terminadas. A escória
deve ser removida de todas as soldas finalizadas, e a
solda e metal base adjacente devem ser limpos por
escovação ou outros meios adequados. Respingos
firmemente aderentes que remanesçam após a operação
de limpeza são aceitáveis, a menos que sua remoção
seja requerida para o propósito de NDT. Juntas soldadas
não devem ser pintadas até depois que a soldagem tenha
sido finalizada e a solda aceita.
5.31 Guias de Solda (Ver 5.2.2)
5.31.1 Uso de Guias de Solda. Soldas devem ser
terminadas na extremidade da junta de uma maneira que
irá assegurar boas soldas. Sempre que necessário, isso
deve ser feito pelo uso de guias de solda alinhadas de tal
forma que forneçam uma extensão da preparação de
junta.
5.31.2 Remoção de Guias de Solda para Estruturas
Não Tubulares Estaticamente Carregadas. Para
estruturas não tubulares estaticamente carregadas, guias
de solda não precisam ser removidas a menos que
requerido pelo Engenheiro.
5.31.3 Remoção de Guias de Solda para Estruturas
Não Tubulares Ciclicamente Carregadas. Para
estruturas não tubulares ciclicamente carregadas, guias
de solda devem ser removidas após término e
resfriamento da solda, e as extremidades da solda
devem alisadas e jateadas com as arestas de partes
adjacentes.
5.31.4 Extremidades de Juntas de Topo Soldadas.
Extremidades de juntas de topo soldadas em que o
jateamento é requerido devem ser acabadas de forma a
não reduzir a largura além da largura detalhada ou da
largura real fornecida, o que for maior, em mais de 1/8
in [3 mm] para não deixar reforço em cada extremidade
que exceda 1/8 in [3 mm]. Extremidades de juntas de
topo soldadas devem progredir a uma inclinação que
não exceda 1 in 10.
AWS D1.1/D1.1M:2010 5. FABRICAÇÃO
209
Tabela 5.1
Exposição Atmosférica
Permissível de Eletrodos
de Baixo Hidrogênio
(ver 5.3.2.2 e 5.3.2.3)
Eletrodo Coluna A Coluna B (horas)
A5.1
E70XX 4 máx
Acima de 4 to 10 máx
E70XXR 9 máx
E70XXHZR 9 máx
E7018M 9 máx
A5.5
E70XX-X 4 máx Acima de 4 a 10 máx
E80XX-X 2 máx Acima de 2 a 10 máx
E90XX-X 1 máx Acima de 1 a 5 máx
E100XX-X 1/2 máx Acima de 1/2 a 4 máx
E110XX-X 1/2 máx Acima de 1/2 a 4 máx
Notes:
1 Coluna A: Eletrodos expostos à atmosfera por períodos mais longos
que os mostrados devem ser secados novamente antes do uso
2 Coluna B: Eletrodos expostos à atmosfera por períodos mais longos
que aqueles estabelecidos por teste devem ser secados novamente
antes do uso
3 Eletrodos devem ser distribuídos e mantidos em estojos, ou outros
contêineres pequenos Contêineres aquecidos não são obrigatórios
4 O designador suplementar opcional, R, designa um eletrodo de baixo
hidrogênio que foi testado para conteúdo de umidade no revestimento
depois de exposição a um ambiente de umidade por 9 horas e atendeu
ao nível máximo permitido em A5 1/A5 1M, Specification for
Carbon Steel Electrodes for Shielded Metal Arc Welding, da AWS.
Tabela 5.2
Tempo Mínimo de Retenção (ver
5.8.1)
1/4 in
[6 mm]
ou Menos
Acima de 1/4
in
[6 mm] Até
2 in [50 mm]
Acima de 2 in [50 mm]
15 min
15 min para
cada
1/4 in [6 mm]
ou fração desta
2 h mais 15 min para cada
in [25 mm] adicional
ou fração desta
acima de 2 in [50 mm]
Tabela 5.3
Tratamento Térmico
Alternativo de Alívio de Tensão
(ver 5.8.2)
Decréscimo em Temperatura abaixo da
Temperatura Mínima Especificada,
Tempo
Mínimo de
Retenção a
Temperaturas
Decrescidas,
Horas
por Polegada
[25 mm] de
Espessura
°F °C
50
100
150
200
30
60
90
120
2
4
10
20
Tabela 5.4
Limites de Aceitabilidade e Reparo de Descontinuidades Laminares em
Superfícies Cortadas Produzidas na Fábrica (ver 5.15.1)
Descrição da Descontinuidade Reparo Requerido
Qualquer descontinuidade de 1 in [25 mm] em comprimento ou
menos
Nenhum, não precisa ser explorado
Qualquer descontinuidade acima de 1 in [25 mm] em comprimento
e 1/8 in [3 mm] em profundidade máxima
Nenhum, mas a profundidade deveria ser exploradaa
Qualquer descontinuidade acima de 1 in [25 mm] em comprimento
com profundidade acima de 1/8 in [3 mm] mas não maior que 1/4
in [6 mm[
Remover, não precisa solda
Qualquer descontinuidade acima de 1 in [25 mm] em comprimento
com profundidade acima de 1/4 in [6 mm] mas não maior que 1 in
[25 mm]
Remover completamente e soldar
Qualquer descontinuidade acima de 1 in [25 mm] em comprimento
com profundidade maior que 1 in [25 mm]
Ver 5.15.1.1
a
Uma verificação focalizada de 10% das descontinuidades na superfície de corte em questão deve ser explorada ao retificar para
determinar a profundidade. Se a profundidade de qualquer das descontinuidades exploradas exceder 1/8 in [3 mm], então todas as
descontinuidades acima de 1 in [25 mm] de comprimento que permanecerem na superfície de corte devem ser exploradas por retificação
para determinar a profundidade. Se nenhuma das descontinuidades explorada na verificação focalizada de 10% tiver uma profundidade
que exceda 1/8 in [3 mm], então o restante das descontinuidades nessa superfície de corte não precisa ser explorado.
AWS D1.1/D1.1M:2010 5. FABRICAÇÃO
210
Tabela 5.5
Tolerâncias de Abertura de Raízes
Tubulares
(ver 5.22.4.2)
Face da Raiz da
Junta
Abertura de Raiz de
Juntas sem Reforço
de Aço
Ângulo
de
Chanfro
da Junta
in mm in mm deg
SMAW
GMAW
FCAW
±1/16
±1/32
±1/16
±2
±1
±2
±1/16
±1/16
±1/16
±2
±2
±2
±5
±5
±5
Observação: Aberturas de raiz mais largas que as permitidas
pelas tolerâncias acima, mas não maiores que a espessura da
parte mais fina, podem ser construídas por soldagem para
dimensões aceitáveis antes da junção das partes por soldagem.
Tabela 5.6
Tolerância de Abaulamento para
Trave Típica
(ver 5.23.3)
Tolerância de Abaulamento (em polegadas)
a/S
Intervalo 0,1 0,2 0,3 0,4 0,5
≥ 100 pés 9 / 16 1 1-1/4 1-7/16 1-1/2
< 100 pés 1/4 1/2 5/8 3/4 3/4
Tolerância de Abaulamento (em milímetros)
a/S
Intervalo 0,1 0,2 0,3 0,4 0,5
≥ 3 m 14 25 34 38 40
< 30 m 7 13 17 19 20
Tabela 5.7
Tolerância de Abaulamento para
Traves sem uma
Mísula Concreta Projetada (ver 5.23.4)
Tolerância de Abaulamento (em polegadas)
a/S
Intervalo 0,1 0,2 0,3 0,4 0,5
≥ pés 1/4 1/2 5/8 3/4 3/4
< 100 pés 1/8 1/4 5/16 3/8 3/8
Tolerância de Abaulamento (em milímetros)
a/S
Intervalo 0,1 0,2 0,3 0,4 0,5
≥ 3 m 7 13 17 19 20
< 30 m 4 6 8 10 10
Tabela 5.8
Tamanhos Mínimos de Solda de
Filete
(ver 5.14)
Espessura do Metal Base (T)a Tamanho Mínimo da
Solda de Fileteb
in mm in mm
T ≤ /4 T ≤ 6 1/8 (Nota c)
3 (Nota
c)
/4 ≤ T ≤
1/2
6 ≤ T ≤ /2 3/16 5
/2 ≤ T ≤
3/4
2 ≤ T ≤ 2 1/4 6
3/4 < T 20 < T 5/16 8
a
Para processos que não são de baixo hidrogênio sem pré-
aquecimento calculado em conformidade com 4.8.4, T é
igual à espessura da parte mais grossa anexada; soldas de
passe único devem ser usadas.
Para processos que não são de baixo hidrogênio e usam
procedimentos estabelecidos para prevenir trincas em
conformidade com 4.8.4 e para processos de baixo
hidrogênio, T é igual à espessura da parte mais fina anexada;
requisitos de passe único não devem se aplicar.
b
Exceto que o tamanho de solda não precisa exceder a
espessura da parte mais fina anexada.
c
O tamanho mínimo para estruturas ciclicamente carregadas
deve ser 3/16 in [5 mm].
AWS D1.1/D1.1M:2010 5. FABRICAÇÃO
211
Tabela 5.9
Perfis de Soldaa (ver 5.24)
Tipo de Junta
Tipo de Solda Topo
Ângulo—
Dentro
Ângulo—Fora Junta em T- Sobreposta
Topo com
Barra de
Prateleira
Chanfro (CJP
ou PJP)
Figura 5.4A Figura 5.4Bb Figura 5.4C Figura 5.4Db N/A Figura 5.4G
Programa A Programa B Programa A Programa B N/A Ver Nota c
Filete
N/A Figura 5.4E Figura 5.4F Figura 5.4E Figura 5.4E N/A
N/A Programa C
Programa C ou
Dd
Programa C Programa C N/A
a
Programas A a D são dados na Tabela 5.10.
b
Para soldas de filete de reforço requeridas por projeto, as restrições de perfil aplicam-se a cada solda, topo e filete, separadamente.
c
Soldas feitas usando barras de prateleira e soldas entre barras horizontais de espessuras desiguais estão isentas das limitações R e C.
d
Ver Figura 5.4F para uma descrição de onde os Programas C e D se aplicam.
Tabela 5.10
Programas de Perfil de Solda (ver 5.24)
Programa A (t = espessura da placa mais grossa anexada para CJP; t =
tamanho da garganta para PJP)
t R min. R máx.
≤ 1 in [25 mm] 0 1/8 in [3 mm]
> 1 in [25 mm],
≤ 2 in [50 mm]
0 3/16 in [5 mm]
> 2 in [50 mm] 0 1/4 in 6 mm]a
Programa B (t = espessura da placa mais grossa anexada para CJP; t = tamanho da garganta para PJP; C = convexidade
ou concavidade permissível)
t R min. R máx. C min. C máx.
< 1 in [25 mm] 0 ilimitado 0 1/8 in [3 mm]
≥ in 25 mm 0 ilimitado 0 3/16 in [5 mm]
Programa C (W = largura da face de solda ou superfícies de esfera individual; C = convexidade permissível)
W C min. C máx. b
≤ 5/ 6 in 8 mm 0 1/16 in [2 mm]
> 5/16 in [8 mm],
< 1 in [25 mm]
0 1/8 in [3 mm]
≥ 1 in [25 mm] 0 3/16 in [5 mm]
Programa D (t = espessura da mais fina das dimensões de aresta expostas; ver Figura 5.4F)
t C min. C máx.
qualquer valor de t 0 t/2
a
Para estruturas ciclicamente carregadas, R máx. para materiais > 2 in [50 mm] de espessura é 3/16 in [5 mm].
b
C não deve exceder R.
AWS D1.1/D1.1M:2010 4. QUALIFICAÇÃO
212
Figura 5.1 – Descontinuidades de Aresta em Material de Corte (ver 5.15.1.1)
AWS D1.1/D1.1M:2010 5. FABRICAÇÃO
213
a
O raio deve fornecer uma transição suave e livre de ranhura; R ≥ 3/8 in mm (Típico /2 in 2 mm ).
b
Orifício de acesso feito após soldar braçadeira a flange.
c
Orifício de acesso feito antes de soldar a braçadeira a flange. A solda braçadeira a flange não deve ser retornada através do
orifício.
d
hmin = 3/4 in [20 mm] ou tw (espessura da braçadeira), o que for maior, hmin não precisa exceder 2 in [50 mm].
e
Estes são detalhes típicos para juntas soldadas a partir de um lado em reforço de aço. Projetos de junta alternativos
deveriam ser considerados.
Observação: Para formas laminadas com espessura de flange maior que 2 in [50 mm] e formas construídas com espessura de
material de braçadeira maior que 1-1/2 in [40 mm], pré-aquecimento a 150°F [65°C] antes de corte térmico, retificação e
inspeção de arestas cortadas termicamente para orifício de acesso usando métodos MT ou PT antes de fazer soldas em
chanfro de emenda de braçadeira e flange.
Figura 5.2 – Geometria do Orifício de Acesso da Solda (ver 5.17.1)
AWS D1.1/D1.1M:2010 5. FABRICAÇÃO
214
Raiz Sem Goivagem
por trás
Raiz com Goivagem
por trás
in mm in mm
(1) Face de raiz da junta ±1/16 2 Não limitado
(2) Abertura de raiz de juntas
sem reforço
±1/16 2
+1/16
–1/80
2
3
Abertura de raiz de juntas com
reforço
+1/4
–1/16
6
2
Não aplicável
(3) Ângulo de chanfro da junta
+10
–5
+10
–5
Observação: Ver 5.22.4.2 para tolerâncias para soldas em chanfro CJP tubulares feitas a
partir de um lado sem reforço.
Figura 5.3 - Tolerâncias de Mão-de-Obra na Montagem de Juntas Soldadas em
Chanfro (ver 5.22.4.1)
AWS D1.1/D1.1M:2010 5. FABRICAÇÃO
215
Figura 5.4 – Requisitos para Perfis de Solda
(ver Tabelas 5.9 e 5.10)
AWS D1.1/D1.1M:2010 5. FABRICAÇÃO
216
Figura 5.4 (Continuação) – Requisitos para Perfis de Solda
(ver Tabelas 5.9 e 5.10)
AWS D1.1/D1.1M:2010 5. FABRICAÇÃO
217
Figura 5.4 (Continuação) – Requisitos para Perfis de Solda
(ver Tabelas 5.9 e 5.10)
AWS D1.1/D1.1M:2010 5. FABRICAÇÃO
218
Figura 5.4 (Continuação) – Requisitos para Perfis de Solda
(ver Tabelas 5.9 e 5.10)
AWS D1.1/D1.1M:2010
219
Esta página está intencionalmente em branco
AWS D1.1/D1.1M:2010
220
6. Inspeção
Parte A
Requisitos Gerais
6.1 Âmbito
A Cláusula 6 contém todos os requisitos para as
qualificações e responsabilidades do Inspetor, critérios de
aceitação para descontinuidades e procedimentos para
NDT.
6.1.1 Informações Fornecidas aos Licitantes. Quando
NDT que não seja visual será requerido, isso deve ser
declarado nas informações fornecidas aos licitantes. Essas
informações devem designar as categorias de soldas a
serem examinadas, a extensão do exame de cada categoria
e o método ou métodos de teste.
6.1.2 Estipulações de Contrato e Inspeção. Para o
propósito desse código, teste e inspeção de
fabricação/ereção, e teste e inspeção de verificação devem
ser funções separadas.
6.1.2.1 Inspeção do Empreiteiro. Esse tipo de
inspeção e teste deve ser realizado conforme necessário
antes da montagem, durante a montagem, durante a
soldagem e após a soldagem, para assegurar que materiais e
mão-de-obra atendam aos requisitos dos documentos de
contrato. Inspeção e teste de fabricação/ereção devem ser
responsabilidades do Empreiteiro a menos que de outra
forma estabelecido nos documentos de contrato.
6.1.2.2 Inspeção de Verificação. Esse tipo de inspeção
e teste deve ser realizado e seus resultados relatados ao
Proprietário e Empreiteiro em tempo hábil para evitar
atrasos no trabalho. Inspeção e teste de verificação são
prerrogativas do Proprietário, que pode realizar essa função
ou, quando estabelecido no contrato, renunciar a
verificação dependente ou estipular que inspeção e
verificação devem ser realizadas pelo Empreiteiro.
6.1.3 Definição de Categorias de Inspetor
6.1.3.1 Inspetor do Empreiteiro. Esse inspetor é a
pessoa devidamente designada que age pelo, e em nome do,
Empreiteiro em todas as inspeções e questões de qualidade
no âmbito dos documentos de contrato.
6.1.3.2 Inspetor de Verificação. Esse inspetor é a
pessoa devidamente designada que age pelo, e em nome do,
Empreiteiro ou Engenheiro em todas as inspeções e
questões de qualidade no âmbito dos documentos de
contrato.
6.1.3.3 Inspetor(es). Quando o termo inspetor é usado
sem qualificação adicional sobre a categoria específica de
inspetor descrita acima, ele aplica-se igualmente a inspeção
e verificação dentro dos limites de responsabilidade
descritos em 6.1.2.
6.1.4 Requisitos de Qualificação do Inspetor
6.1.4.1 Base para Qualificação. Os inspetores
responsáveis pela aceitação ou rejeição de material e mão-
de-obra devem ser qualificados. As bases de qualificação
do Inspetor devem ser documentadas. Se o Engenheiro
escolher especificar as bases de qualificação de inspetor,
isso deve ser especificado nos documentos de contrato.
A base de qualificação aceitável deve ser a seguinte:
(1) Certificação atual ou anterior como um Inspetor de
Soldagem Certificado (Certified Welding Inspector - CWI)
da AWS em conformidade com as provisões de QC1,
Standard for AWS Certification of Welding Inspectors, da
AWS, ou
(2) Qualificação atual ou anterior pelo Canadian
Welding Bureau (CWB) em conformidade com os
requisitos da Canadian Standard Association (CSA)
Standard W178.2, Certification of Welding Inspectors, ou
(3) Um indivíduo que, por treino ou experiência, ou
ambos, em fabricação inspeção e teste de metais, é
competente para realizar inspeção do trabalho
6.1.4.2. Prazo de Efetividade. A qualificação de um
Inspetor deve permanecer efetiva indefinidamente, contanto
que o Inspetor permaneça ativo em inspeção de fabricação
de aço soldado, a menos que haja razão específica para
questionar a habilidade do Inspetor.
AWS D1.1/D1.1M:2010 6. INSPEÇÃO
221
6.1.4.3 Inspetor Assistente. O Inspetor pode ser
apoiado por Inspetores Assistentes que podem realizar
funções específicas de inspeção sob a supervisão do
Inspetor. Inspetores Assistentes devem ser qualificados
por treino e experiência para realizar as funções específicas
para a qual são designados. O trabalho de Inspetores
Assistentes deve ser regularmente monitorado pelo
Inspetor, geralmente em uma base diária.
6.1.4.4 Exame Oftalmológico. Inspetores e Inspetores
Assistentes devem ter passado por um exame oftalmológico
com ou sem lentes corretivas para provar sua acuidade de
visão de perto de Jaeger J-2 a uma distância de 12 in-17 in
[300 mm-430 mm]. O exame de vista de toda a equipe de
inspeção deve ser requerido a cada três anos ou menos, se
necessário, para demonstrar adequação.
6.1.4.5 Autoridade de Verificação. O Engenheiro
deve ter autoridade para verificar a qualificação dos
Inspetores.
6.1.5 Responsabilidade do Inspetor. O Inspetor deve
verificar que toda fabricação e ereção por soldagem seja
realizada em conformidade com os requisitos dos
documentos de contrato.
6.1.6 Itens a serem Fornecidos ao Inspetor. Ao Inspetor
devem ser fornecidos desenhos detalhados completos
mostrando o tipo de tamanho de comprimento de todas as
soldas a serem feitas. Ao Inspetor também devem ser
fornecida a porção dos documentos de contrato que
descreve os requisitos de material e qualidade para os
produtos a serem fabricados ou eregidos, ou ambos.
6.1.7 Notificação do Inspetor. O Inspetor deve ser
notificado previamente do início de operações sujeitas a
inspeção e verificação.
6.2 Inspeção de Materiais e
Equipamento
O Inspetor do Empreiteiro deve assegurar que apenas
materiais e equipamentos em conformidade com os
requisitos deste código devem ser usados.
6.3 Inspeção de WPSs
6.3.1 WPS Pré-qualificada. O Inspetor do Empreiteiro
deve assegurar que todas as WPSs pré-qualificadas a serem
usadas para o trabalho estejam em conformidade com os
requisitos da Cláusula 3, da Cláusula 5 e dos documentos
de contrato.
6.3.2 WPSs Qualificadas por Teste. O Inspetor do
Empreiteiro deve assegurar que todas as WPSs qualificadas
por teste estejam em conformidade com os requisitos das
Cláusulas 4 e 5 e dos documentos de contrato.
6.3.3 WPSs na Produção. O Inspetor do Empreiteiro deve
assegurar que todas as operações de soldagem sejam
realizadas em conformidade com WPSs que atendem aos
requisitos deste código e aos documentos de contrato.
6.4 Inspeção de Qualificações de
Soldador, Operador de Soldagem
e Soldador Ponteador
6.4.1 Determinação de Qualificação. O Inspetor deve
permitir que a soldagem seja realizada apenas por
soldadores, operadores de soldagem ou soldadores
ponteadores que sejam qualificados em conformidade com
os requisitos da Cláusula 4, ou deve assegurar que cada
soldador, operador de soldagem ou soldador ponteador
tenha demostrado previamente tal qualificação sob outra
supervisão aceitável e aprovada pelo Engenheiro em
conformidade com 4.2.2.1.
6.4.2 Reteste com Base na Qualidade do Trabalho.
Quando a qualidade do trabalho de um soldador, operador
de soldagem ou soldador ponteador parece estar abaixo dos
requisitos desse código, o Inspetor pode requerer que o
soldador, operador de soldagem ou soldador ponteador
demonstre uma habilidade de produzir soldas estáveis por
meio de um teste simples, como teste de ruptura de solda de
filete, ou requerer requalificação completa em
conformidade com a Cláusula 4.
6.4.3 Reteste com Base na Expiração da Qualificação. O
Inspetor deve requerer requalificação de qualquer soldador
ou operador de soldagem qualificado que não tenha usado o
processo (para o qual eles são qualificados) por um período
que exceda seis meses (ver 4.2 .3.1).
6.5 Inspeção de Trabalho e Registros
6.5.1 Tamanho, Comprimento e Local das Soldas. O
Inspetor deve assegurar que o tamanho, comprimento e
local de todas as soldas esteja em conformidade com os
requisitos desse código e com os desenhos de detalhe, e que
nenhuma solda não especificada tenha sido acrescentada
sem a aprovação do Engenheiro.
6.5.2 Âmbito dos Exames. O Inspetor deve, em intervalos
adequados, observar preparação de junta, prática de
montagem, as técnicas de soldagem e o desempenho de
cada soldador, operador de soldagem e soldador ponteador
para assegurar que os requisitos aplicáveis desse código
sejam atendidos.
6.5.3 Extensão do Exame. O Inspetor deve examinar o
trabalho para assegurar que atenda aos requisitos desse
código. Outros critérios de aceitação, diferentes daqueles
descritos nesse código, podem ser usados quando
aprovados pelo Engenheiro. Tamanho e contorno de soldas
devem ser medidos com medidores adequados. A inspeção
visual de trincas em soldas e metal base e outras
descontinuidades devem ser auxiliadas por uma luz forte,
lupas ou outros dispositivos que podem ser considerados
úteis.
AWS D1.1/D1.1M:2010 6. INSPEÇÃO
222
6.5.4 Identificação do Inspetor nas Inspeções
Realizadas. Os Inspetores devem identificar com uma
marca distinta ou outros métodos de registro todas as partes
ou juntas que inspecionaram e aceitaram Qualquer método
de registro que seja acordado mutuamente pode ser usado.
Estampagem matriz de membros cislicamente carregados
sem aprovação do Engenheiro deve ser proibida.
6.5.5 Manutenção de Registros. O Inspetor deve manter
um registro de qualificação de todos os soldadores,
operadores de soldagem e soldadores ponteadores; de todas
as qualificações WPS ou outros testes feitos; e de todas as
outras informações que podem ser requeridas.
Parte B
Responsabilidades do Empreiteiro
6.6 Obrigações do Empreiteiro
6.6.1 Responsabilidades do Empreiteiro. O Em-preiteiro
deve ser responsável pela inspeção visual e correção
necessária de todas as deficiências em material e mão-de-
obra em conformidade com os requerimentos desse código.
6.6.2. Requisições do Inspetor. O Empreiteiro deve
atender todas as requisições do(s) Inspetor(es) para corrigir
deficiências em material e mão-de-obra como estabelecido
nos documentos de contrato.
6.6.3 Julgamento de Engenharia. No evento de uma
soldagem defeituosa, ou sua remoção para nova soldagem,
danificar o metal base de forma que no julgamento do
Engenheiro sua retenção não está em conformidade com a
intenção dos documentos de contrato, o Empreiteiro deve
remover e substituir o metal base danificado ou deve
compensar a deficiência de uma maneira aprovada pelo
Engenheiro.
6.6.4 NDT Especificado Não Visual. Quando inspeção
NDT não visual é especificada na informação fornecida aos
licitantes, deve ser responsabilidade do Empreiteiro
assegurar que todas as soldas especificadas atendam aos
requisitos de qualidade da Cláusula 6, Parte 6, o que for
aplicável.
6.6.5 NDT Não Especificado, Não Visual. Se inspeção
NDT não visual não é especificado no acordo original de
contrato, mas é subsequentemente requisitado pelo
Proprietário, o Empreiteiro deve realizar qualquer teste
requisitado ou deve permitir que qualquer teste seja
realizado em conformidade com 6.14. O Proprietário deve
ser responsável por todos os custos associados, inclusive
manuseio, preparação de superfície, NDT e reparo de
descontinuidades que não aquelas descritas em 6.9, o que
for aplicável, a taxas de mútuo acordo entre Proprietário e
Empreiteiro. No entanto, se tal teste revelar uma tentativa
de fraudar ou mascarar a não conformidade com esse
código, o trabalho de reparo deve ser feito às custas do
Empreiteiro.
Parte C
Critérios de Aceitação
6.7 Âmbito
Critérios de aceitação para inspeção NDT visual de
conexões tubulares e conexões não tubulares estaticamente
e ciclicamente carregadas são descritos na Parte C. A
extensão do exame e os critérios de aceitação devem ser
especificados nos documentos de contrato nas informações
fornecidas ao licitante.
6.8 Aprovação do Engenheiro para
Critérios de Aceitação
Alternativos
A premissa fundamental do código é fornecer estipulações
gerais aplicáveis à maioria das situações. Critérios de
aceitação para soldas de produção diferentes daqueles
descritos nesse código podem ser usados para uma
aplicação particular, contanto que sejam adequadamente
documentados pelo proponente e aprovados pelo
Engenheiro. Esses critérios de aceitação alternativos podem
ser baseados na avaliação de adequação para serviço
usando experiência passada, evidência experimental ou
análise de engenharia considerando tipo de material, efeitos
de carga de serviço e fatores ambientais.
6.9 Inspeção Visual
Todas as soldas devem ser inspecionadas visualmente e
devem ser aceitáveis se os critérios da Tabela 6.1 forem
satisfeitos.
6.10 PT e MT
Soldas que são sujeitas a MT e PT, além da inspeção
visual, devem ser avaliadas com base nos requisitos
aplicáveis para inspeção visual. O teste deve ser realizado
em conformidade com 6.14.4 ou 6.14.5, o que for aplicável.
6.11 NDT
Exceto conforme fornecido em 6.18, todos os métodos
NDT, inclusive requisitos e qualificações de equipamento,
qualificação de pessoal e métodos de operação devem estar
em conformidade com a Cláusula 6, Inspeção. Critérios de
aceitação devem ser como descrito nessa seção. Soldas
sujeitas a NDT devem ter sido consideradas aceitáveis por
inspeção visual em conformidade com 6.9.
Para soldas sujeitas a NDT em conformidade com 6.10,
6.11, 6.12.1 e 6.13.3, o teste pode começar imediatamente
após as soldas concluídas terem resfriado até a temperatura
ambiente. Critérios de aceitação para aços A 514, A 517 e
A 709 Grau 100 e 100W da ASM devem ser baseados em
AWS D1.1/D1.1M:2010 6. INSPEÇÃO
223
NDT realizado não menos que 48 horas depois da
conclusão das soldas.
6.11.1 Requisitos de Conexões Tubulares. Para soldas de
topo em chanfro CJP soldadas a partir de um lado sem
reforço, todo o comprimento de todas as soldas de
produção tubulares concluídas deve ser examinado por RT
ou UT. Os critérios de aceitação devem estar em
conformidade com 6.12.1 ou 6.13.3, conforme aplicável.
6.12 RT
Soldas que mostram por RT que não atendem aos requisitos
da Parte C, ou critérios de aceitação alternativos por 6.8,
devem ser reparadas em conformidade com 5.26. Outras
descontinuidades que não sejam trincas devem ser
avaliadas na base de serem alongadas ou arredondadas. A
despeito do tipo de descontinuidade, uma descontinuidade
alongada deve ser definida como aquela em que o
comprimento excede três vezes a largura. Uma
descontinuidade arredondada deve ser definida como
aquela cujo comprimento é três vezes ou menos a largura, e
pode ser arredondada ou irregular e pode ter a extremidade
final alongada.
6.12.1 Critérios de Aceitação de Descontinuidade para
Conexões Não Tubulares Estaticamente Carregadas e
Conexões Tubulares Estaticamente ou Ciclicamente
Carregadas. Soldas que são sujeitas a RT além da inspeção
visual não devem ter trincas e devem ser inaceitáveis se o
RT mostrar quaisquer descontinuidades que excedam as
seguintes limitações. As limitações dadas pela Figura 6.1
para tamanho de solda (E) de 1-1/8 in [30 mm] deve
aplicar-se a todos os tamanhos de solda maiores que 1-1/8
in [30 mm].
(1) Descontinuidades alongadas excedendo o tamanho
máximo da Figura 6.1.
(2) Descontinuidades mais próximas que a permissão
mínima de espaço da Figura 6.1.
(3) Descontinuidades arredondadas maiores que o
tamanho máximo de E/3, para não exceder 1/4 in [6 mm].
No entanto, quando E é maior que 2 in [50 mm], a
indicação de arredondamento máximo pode ser 3/8 in [10
mm]. O espaçamento mínimo de descontinuidades
arredondadas maiores ou iguais que 3/32 in [2,5 mm] para
uma descontinuidade alongada ou arredondada aceitável ou
para uma aresta ou extremidade de solda de intersecção
deve ser três vez es a maior dimensão da maior das
descontinuidades sendo considerada.
(4) Na intersecção de uma solda com outra solda ou
uma aresta livre (isto é, uma aresta além da qual não não
existe extensão material), descontinuidades aceitáveis
devem estar em conformidade com as limitações da Figura
6.1, Casos 1-N.
(5) Descontinuidades isoladas tais como um grupo de
indicações arredondadas, tendo uma soma das maiores
dimensões excedendo o tamanho máximo de
descontinuidade única permitido na Figura 6.1. O
espaçamento mínimo para outro grupo, ou para uma
descontinuidade alongada ou arredondada, ou para uma
aresta ou extremidade de uma solda de intersecção deve ser
três vezes a maior dimensão da maior das descontinuidades
sendo considerada.
(6) A soma de descontinuidades individuais cada uma
tendo uma dimensão maior de menos de 3/32 in [2,5 mm]
não deve exceder 2e/3 ou 3/8 in [10 mm], o que for menor,
em qualquer 1 in [25 mm] linear de solda. Esse requisito é
independente de (1), (2) e (3) acima.
(7) Descontinuidades em linha, em que a soma das
maiores dimensões excedem E em qualquer comprimento
de 6E. Quando o comprimento da solda sendo examinada é
menor que 6E, a soma permissível das maiores dimensões
deve ser proporcionalmente menor.
6.12.2 Critérios de Aceitação de Descontinuidade para
Conexões Não Tubulares Ciclicamente Carregadas.
Soldas que são sujeitas a RT além de inspeção visual não
devem ter trincas e devem ser inaceitáveis se o RT mostra
qualquer dos tipos de descontinuidades descritas em
6.12.2.1, 6.12.2.2 ou 6.12.2.3. As limitações dadas pelas
Figuras 6.2 e 6.3 para tamanho de solda (E) de 1-1/2 in [38
mm] devem aplicar-se para todos os tamanhos de solda
maiores que 1-1/2 in [38 mm].
6.12.2.1 Conexões Não Tubulares Ciclicamente
Carregadas em Tensão
(1) Descontinuidades excedendo o tamanho máximo da
Figura 6.2.
(2) Descontinuidades mais próximas que a permissão
mínima de espaço da Figura 6.2.
(3) Na intersecção de uma solda com outra solda ou
uma aresta livre (isto é, uma aresta além da qual não existe
extensão material), descontinuidades aceitáveis devem estar
em conformidade com as limitações da Figura 6.2, Casos 1-
N.
(4) Descontinuidades isoladas tais como um grupo de
indicações arredondadas, tendo uma soma das maiores
dimensões excedendo o tamanho máximo de
descontinuidade única permitido na Figura 6.2. O
espaçamento mínimo para outro grupo, ou para uma
descontinuidade alongada ou arredondada, ou para uma
aresta ou extremidade de uma solda de intersecção deve ser
três vezes a maior dimensão da maior das descontinuidades
sendo considerada.
(5) A soma de descontinuidades individuais cada uma
tendo uma dimensão maior de menos de 3/32 in [2,5 mm]
não deve exceder 2E/3 ou 3/8 in [10 mm], o que for menor,
em qualquer 1 in [25 mm] linear de solda. Esse requisito é
independente de (1), (2) e (3) acima.
(6) Descontinuidades em linha, em que a soma das
maiores dimensões excede E em qualquer comprimento de
6E. Quando o comprimento da solda sendo examinada é
menor que 6E, a soma permissível das maiores dimensões
deve ser proporcionalmente menor.
AWS D1.1/D1.1M:2010 6. INSPEÇÃO
224
6.12.2.2 Conexões Não Tubulares Ciclicamente
Carregadas em Compressão
(1) Descontinuidades excedendo o tamanho máximo da
Figura 6.3.
(2) Descontinuidades mais próximas que a permissão
mínima de espaço da Figura 6.3.
(3) Na intersecção de uma solda com outra solda ou
uma aresta livre (isto é, uma aresta além da qual não existe
extensão material), descontinuidades aceitáveis devem estar
em conformidade com as limitações da Figura 6.3, Casos I-
V.
(4) Descontinuidades isoladas como um grupo de
indicações arredondadas, tendo uma soma de suas maiores
dimensões excedendo o tamanho máximo de
descontinuidade única permitido na Figura 6.3. O
espaçamento mínimo para outro grupo, ou para uma
descontinuidade alongada ou arredondada, ou para uma
aresta ou extremidade de uma solda de intersecção deve ser
três vezes a maior dimensão da maior das descontinuidades
sendo considerada.
(5) A soma de descontinuidades individuais cada uma
tendo uma dimensão maior de menos de 3/32 in [2,5 mm]
não deve exceder 2E/3 ou 3/8 in [10 mm], o que for menor,
em qualquer 1 in [25 mm] linear de solda. Esse requisito é
independente de (1), (2) e (3) acima.
(6) Descontinuidades em linha, em que a soma das
maiores dimensões excede E em qualquer comprimento de
6E. Quando o comprimento da solda sendo examinada é
menor que 6E, a soma permissível das maiores dimensões
deve ser proporcionalmente menor.
6.12.2.3 Descontinuidades Maiores que 1/16 in [2
mm]. Além dos requisitos de 6.12.2.1 e 6.12.2.2,
descontinuidades tendo uma dimensão maior de menos de
1/16 in [2 mm] devem ser inaceitáveis se a soma de suas
maiores dimensões excede 3/8 in [10 mm] em qualquer
polegada linear de solda.
6.13 UT
6.13.1 Critérios de Aceitação para Conexões Não
Tubulares Estaticamente Carregadas. Os critérios de
aceitação para soldas sujeitas a UT além de visual inspeção
devem atender os requisitos da Tabela 6.2. Para solda CJP
braçadeira-a-flange, a aceitação de descontinuidades
detectadas por movimentos de escaneamento que não o
padrão de escaneamento 'E' (ver 6.32.2.2) pode ser baseada
em espessura de solda igual à espessura real da braçadeira
mais 1 in [25 mm]. Descontinuidades detectadas pelo
padrão de escaneamento 'E' devem ser avaliadas pelos
critérios da Tabela 6.2 para a espessura real da braçadeira.
Quando soldas CJP braçadeira-a-flange são sujeitas a
tensão de tração calculada normal para a solda, elas devem
ser assim designadas nos desenhos de projeto e devem estar
em conformidade com os requisitos da Tabela 6.2. Soldas
testadas por ultra-som são avaliadas com base em um ultra-
som refletindo descontinuidade em proporção a seu efeito
na integridade da solda. Indicações de descontinuidades
que permanecem no visor enquanto a unidade de busca é
movida em direção a e para longe da descontinuidade
(movimento de escaneamento "b") podem ser indicativas
de descontinuidades planares com dimensão significativa
através da garganta.
Como a superfície refletora principal das descontinuidades
mais críticas é orientada um mínimo de 20º (para uma
unidade de busca de 70º) a 45' (para uma unidade de busca
de 45') de perpendicular ao feixe sonoro, a avaliação da
amplitude (taxa dB) não permite disposição confiável.
Quando indicações exibindo essas características planares
estão presentes na sensibilidade de escaneamento, uma
avaliação mais detalhada da descontinuidade por outros
meios deve ser requerida (por exemplo, técnicas UT
alternativas, RT, retificação ou goivagem para inspeção
visual, etc.).
6.13.2 Critérios de Aceitação para Conexões Não
Tubulares Ciclicamente Carregadas. Os critérios de
aceitação para soldas sujeitas a UT além de inspeção visual
deve atender os seguintes requisitos:
(1) Soldas sujeitas a tensão de tração sob qualquer
condição de carga devem estar em conformidade com os
requisitos da Tabela 6.3.
(2) Soldas sujeitas a tensão compressiva devem estar
em conformidade com os requisitos da Tabela 6.2.
6.13.2.1 Indicações. Soldas testadas por ultra-som são
avaliadas com base em um ultra-som refletindo
descontinuidade em proporção a seu efeito na integridade
da solda. Indicações de descontinuidades que permanecem
no visor enquanto a unidade de busca é movida em direção
a e para longe da descontinuidade (movimento de
escaneamento "b") podem ser indicativas de
descontinuidades planares com dimensão significativa
através da garganta Como a orientação de tais
descontinuidades, com relação ao feixe sonoro, desvia de
perpendicular, podem resultar taxas de dB que não
permitem avaliação direta e confiável da integridade da
junta soldada. Quando indicações que exibem essas
características planares estão presentes na sensibilidade de
escaneamento, uma avaliação mais detalhada da
descontinuidade por outros meios pode ser requerida (por
exemplo, técnicas UT alternativas, RT, retificação ou
goivagem para inspeção visual, etc.).
6.13.2.2 Escaneamento. Soldas CJP braçadeira-a-flange
devem estar em conformidade com os requisitos da Tabela
6.2, e a aceitação de descontinuidades detectadas por
movimentos de escaneamento que não o padrão de
escaneamento 'E' (ver 6.32.2.2) podem ser baseadas em
uma espessura de solda igual à espessura real da braçadeira
mais 1 in [25 mm]. Descontinuidades detectadas pelo
padrão de escaneamento 'E' devem ser avaliadas pelos
critérios de 6.13.2 para a espessura real da braçadeira.
Quando tais soldas braçadeira-a-flange são sujeitas a tensão
de tração calculada normal à solda, elas devem ser assim
designadas em desenhos de projeto e devem estar em
conformidade com os requisitos da Tabela 6.3.
AWS D1.1/D1.1M:2010 6. INSPEÇÃO
225
6.13.3 Critérios de Aceitação para Conexões Tubulares.
Critérios de aceitação para UT devem ser fornecidos nos
documentos de contrato. Classe R ou Classe X, ou ambas,
podem ser incorporadas por referência. Critérios de
aceitação baseados em amplitude, como dado por 6.13.1,
também podem ser usados para soldas em chanfro em
juntas de topo em tubulações de diâmetro de 24 in [600
mm] e acima, contanto que todas as provisões relevantes da
Cláusula 6, Parte F, sejam seguidas. No entanto, esses
critérios de amplitude não deve ser aplicado a conexões
tubulares em T-, Y- e K-.
6.13.3.1 Classe R (Aplicável Quando UT é Usado
como uma Alternativa para RT). Todas as indicações
tendo metade (6 dB) ou menos amplitude que o nível de
sensibilidade padrão (com devida consideração a 6.27.6)
devem ser desconsideradas. Indicações excedendo o nível
de desconsideração devem ser avaliadas como segue:
(1) Refletores esféricos aleatórios isolados, com
separação mínima de 1 in [25 mm] até o nível de
sensibilidade padrão devem ser aceitas. Refletores maiores
devem ser avaliados como refletores lineares.
(2) Refletores esféricos alinhados devem ser avaliados
como refletores lineares.
(3) Refletores esféricos agrupados tendo uma densidade
de mais de um por polegada quadrada [645 milímetros
quadrados] com indicações acima do nível de
desconsideração (área projetada normal à direção da tensão
aplicada, com média acima de 6 in [150 mm] de
comprimento de solda) devem ser rejeitados.
(4) Refletores lineares ou planares cujos comprimentos
(extensão) excedem os limites da Figura 6.4 devem ser
rejeitados. Além disso, refletores de raiz não devem
exceder os limites da Classe X.
6.13.3.2 Classe X (Critérios de Adequação ao
Propósito Baseados na Experiência Aplicáveis a
Conexões em T-, Y- e K- em Estruturas Redundantes
com Ligação Soldada Resistente ao Entalhe). Todas as
indicações tendo metade (6 dB) ou menos amplitude que o
nível de sensibilidade padrão (com devida consideração a
6.27.6) devem ser desconsideradas. Indicações excedendo
o nível de desconsideração devem ser avaliadas como
segue:
(1) Refletores esféricos devem ser como descrito na
Classe R, exceto que quaisquer indicações dentro dos
seguintes limites para linear ou planar devem ser aceitáveis.
(2) Refletores lineares ou planares devem ser avaliados
por meio de técnicas de limite de feixe, e aqueles cuja
dimensão exceder os limites da Figura 6.5 devem ser
rejeitados. A área de raiz deve ser definida como jazendo
em 1/4 in [6 mm] ou tw/4, o que for maior, da raiz da solda
teórica, como mostrado na Figura 3.8.
Parte D
Procedimentos NDT
6.14 Procedimentos
Os procedimentos NDT como descritos nesse código
têm sido usados por muitos anos e fornecem uma segurança
razoável de integridade da solda; no entanto, parece que
alguns usuários do código incorretamente consideram cada
método capaz de detectar todas as descontinuidades
inaceitáveis. Usuários do código deviam tornar-se
familiares com todas as limitações dos métodos NDT a
serem usados, particularmente a inabilidade de detectar e
caracterizar descontinuidades planares com orientações
específicas. (As limitações e uso complementar de cada
método são explicados na última edição de B1.10, Guide
for Nondestructive Examination of Welds, da AWS).
6.14.1 RT. Quando RT é usado, o procedimento e técnica
devem estar em conformidade com a Parte E dessa seção.
6.14.2 Sistemas de Imagem por Radiação. Quando exame
é realizado usando sistemas de imagem por radiação, o
procedimento e técnica devem estar em conformidade com
a Parte G dessa seção.
6.14.3 UT. Quando UT é usado, o procedimento e técnica
devem estar em conformidade com a Parte E dessa seção.
6.14.4 MT. Quando MT é usado, o procedimento e técnica
devem estar em conformidade com E 709 da ASTM, e o
padrão de aceitação deve estar em conformidade com a
Cláusula 6, Parte C, deste código, o que for aplicável.
6.14.5 PT. Para detectar descontinuidades abertas na
superfície, PT pode ser usado. Os métodos padrão
estabelecidos em E 165 da ASTM devem ser usados para
inspeção PT, e os padrões de aceitação devem estar em
conformidade com a Cláusula 6, Parte C, deste código, o
que for aplicável.
6.14.6 Qualificação de Equipe
6.14.6.1 Requisitos ASNT. A equipe realizando NDT
não visual deve estar qualificada em conformidade com a
atual edição de American Society for Nondestructive
Testing Recommended Practice Nº SNT-TC-IA.
Indivíduos que realizam NDT devem estar qualificados
para:
(1) NDT Nível II, ou
(2) NDT Nível I trabalhando sob o NDT Nível II
6.14.6.2 Certificação. A certificação de indivíduos
Nível I e Nível II deve ser realizada por um indivíduo
Nível III que foi certificado por (1) The American Society
for Nondestructive Testing, ou (2) tem educação,
treinamento, experiência e passou com sucesso o exame
escrito descrito em SNT-TC-lA.
AWS D1.1/D1.1M:2010 6. INSPEÇÃO
226
6.14.6.3 Isenção de Requisitos QC1. Equipe
realizando NDT sob as provisões de 6.14.6. não precisam
ser qualificadas e certificadas sob as provisões de
AWSQCL.
6.15 Extensão do Teste
Informações fornecidas aos licitantes devem claramente
identificar a extensão de NDT (tipos, categorias ou
localização) de soldas a serem testadas.
6.15.1 Teste Completo. Juntas de soldas que requerem
teste por especificação de contrato devem ser testadas em
seu comprimento total, a menos que teste parcial ou
localizado seja especificado.
6.15.2 Teste Parcial. Quando teste parcial é especificado,
o local e comprimentos das soldas ou categorias de soldas a
serem testadas devem ser claramente designados nos
documentos de contrato.
6.15.3 Teste Localizado. Quando teste localizado é
especificado, o número de pontos em cada categoria
designada de junta soldada deve ser testado em um
comprimento de solda estabelecido ou um segmento
designado de solda deve ser incluído nas informações
fornecidas aos licitantes. Cada teste localizado deve cobrir
pelo menos 4 in [100 mm] do comprimento de solda.
Quando testes localizados revelam indicações de
descontinuidades inaceitáveis que requerem reparo, a
extensão de tais descontinuidades deve ser explorada. Dois
pontos adicionais no mesmo segmento de junta de solda
devem ser tomados em locais distantes do ponto original.
O local dos pontos adicionais deve ser concordado
mutuamente entre o Empreiteiro e o Inspetor de
Verificação.
Quando um dos pontos adicionais exibe defeitos que
requerem reparos, todo o segmento de solda representado
pelo ponto original deve ser completamente testado. Se a
solda envolve mais de um segmento, dois pontos adicionais
em cada segmento devem ser testados em locais aceitos
pelo Empreiteiro e pelo Inspetor de Verificação, sujeito à
interpretação precedente.
6.15.4 Informações Relevantes. A equipe NDT deve,
antes do teste, ser provida ou ter acesso a informações
relevantes a respeito das geometrias da junta de solda,
espessuras de materiais e processos de soldagem usados
para fazer a ligação soldada. A equipe NDT deve ser
informada de quaisquer reparos subsequentes na solda.
Parte E
Teste Radiográfico (RT)
6.16 RT de Soldas em Chanfro em
Juntas de Topo.
6.16.1 Procedimentos e Padrões. Os procedimentos e
padrões estabelecidos na Parte E devem governar o RT de
soldas quando tal inspeção é requerida por documentos de
contrato como dado por 6.14. Os requisitos descritos aqui
são especificamente para testar soldas em chanfro em
juntas de topo em placas, formas e barras por fontes de
raio-x ou raio gama. A metodologia deve estar em
conformidade com E 94, Standard Recommended Practice
for Radiographic Testing, da ASTM, E 142, Standard
Method for Controlling Quality of Radiographic Testing,
da ASTM, E 747, Controlling Quality of Radiographic
Testing Using Wire Penetrameters, da ASTM e E 1032,
Radiographic Examination of Weldments, da ASTM.
6.16.2 Variações. Variações em procedimentos, equipa-
mento e padrões de aceitação de teste podem ser usados
mediante acordo entre o Empreiteiro e o Proprietário. Tais
variações incluem, entre outros, o seguinte: RT de soldas
em filete, em T- e em ângulo; modificações na distância
fonte-a-filme; aplicação incomum de filme; aplicações de
indicadores de qualidade de imagem (IQI) do tipo orifício
ou tipo arame incomuns (inclusive IQI lado filme), e RT de
espessura maior que 6 in [150mm] em tipos de filme,
densidades e variações em exposição, desenvolvimento e
técnicas de visualização.
6.17 RT Procedimentos
6.17.1 Procedimento. Radiografias devem ser feitas
usando uma única fonte de radiação X ou gama. A
sensibilidade radiográfica deve ser julgada com base nos
IQIs de tipo de imagem do orifício ou de arame. Técnica e
equipamento radiográfico devem fornecer sensibilidade
suficiente para delinear claramente os IQIs requeridos para
tipo de orifício e os orifícios ou arames essenciais como
descrito em 6.17.7, Tabelas 6.4 e 6.5 e Figuras 6.6 e 6.7. A
identificação de letras e números deve ser mostrada
claramente na radiografia.
6.17.2 Requisitos de Segurança. RT deve ser realizado em
conformidade com todos os requisitos aplicáveis de
segurança.
6.17.3 Remoção de Reforço. Quando od documentos de
contrato requerem a remoção de reforço de solda, as soldas
devem ser preparadas para RT por retificação como
descrito em 5.24.3.1. Outras superfícies de solda não
precisam ser retificadas ou alisadas de outra forma para os
propósitos de RT, a menos que as irregularidades de
superfície ou a junção entre solda e metal base possa causar
descontinuidades de solda censuráveis a serem
obscurecidas na radiografia.
6.17.3.1 Guias. Guias de solda devem ser removidas
antes do RT a menos que de outra forma aprovado pelo
Engenheiro.
6.17.3.2 Reforço de Aço. Quando requerido por 5.10
ou outras provisões de documentos de contrato, reforço de
aço deve ser removido e a superfície deve ser nivelada com
acabamento por retificação antes do RT. A retificação deve
ser como descrito em 5.24.3.1.
6.17.3.3 Reforço. Quando o reforço de solda não é
removido, ou a colocação alternativa de arame IQI não é
usada, calços de aço que se estendem pelo menos 1/8 [3
mm] além de três lados do IQI de tipo de orifício ou IQI de
AWS D1.1/D1.1M:2010 6. INSPEÇÃO
227
arame devem ser colocados sob o IQI de tipo orifício ou
IQI de arame, para que a espessura total do aço entre o IQI
de tipo de orifício e o filme seja aproximadamente igual à
espessura média da solda medida através de seu reforço.
6.17.4 Filme Radiográfico. Filme radiográfico deve ser
como descrito em E 94, da ASTM. Telas de folha de
chumbo devem ser como descrito em E 94, da ASTM.
Telas fluorescentes devem ser proibidas.
6.17.5 Técnica. Radiografias devem ser feitas com uma
única fonte de radiação centrada tão perto quanto praticável
com respeito ao comprimento e largura da parte da solda
sendo examinada.
6.17.5.1 Embotamento Geométrico. Fontes de raio
gama, a despeito do tamanho, devem ser capazes de atender
às limitações de embotamento geométrico de Boiler and
Pressure Vessel Code, Seção V, Artigo 2 da ASME.
6.17.5.2 Distância Fonte-a-Sujeito. A distância fonte-
a-sujeito não deve ser menor que o comprimento total do
filme sendo exposto em um plano único. Essa provisão não
deve aplicar-se a exposições panorâmicas feitas sob as
provisões de 6.16.2.
6.17.5.3 Limitações de Distância Fonte-a-Sujeito. A
distância fonte-a-sujeito não deve ser menor que sete vezes
a espessura de solda mais reforço, se houver, nem tal que a
radiação de inspeção penetre qualquer parte da solda
representada na radiografia a um ângulo maior que 26-1/2'
a partir de uma linha normal à superfície da solda.
6.17.6 Fontes. Unidades de raio-X com máximo de
600kVp e irídio 192 podem ser usadas como uma fonte
para todos os RT, contanto que tenham habilidade de
penetração adequada. Cobalto 60 apenas deve ser usado
como uma fonte radiográfica quando o aço sendo
radiografada excede 2-1/2 [65 mm] em espessura. Outras
fontes radiográficas podem ser usadas com a aprovação do
Engenheiro.
6.17.7 Seleção e Colocação de IQI. IQIs devem ser
selecionados e colocados na ligação soldada na área de
interesse sendo radiografada, como mostrado na Tabela 6.6.
Quando uma solda de cano circunferencial completa é
radiografada com uma exposição única e a fonte de
radiação é colocada no centro da curvatura, pelo menos três
IQIs igualmente espaçados devem ser usados. Reforço de
aço não deve ser considerado parte da solda ou reforço de
solda na seleção IQI.
6.17.8 Técnica. Juntas soldadas devem ser radiografadas e
o filme indexado por métodos que fornecerão inspeção
contínua e completa da junta dentro dos limites
especificados para serem examinados. Limites de junta
devem ser mostrados claramente nas radiografias. Filme
curto, tela curta, mordedura excessiva por radiação
dispersada ou qualquer outro processo que obscureça partes
do comprimento total da solda devem tornar a radiografia
inaceitável.
6.17.8.1 Comprimento de Filme. O filme deve ter
comprimento suficiente e deve ser colocado para fornecer
pelo menos 1/2 in [12 mm] de filme além da aresta
projetada da solda.
6.17.8.2 Filme Sobreposto. Soldas maiores que 14 in
[350 mm] podem ser radiografadas por cassetes de filme
sobreposto e fazendo uma única exposição, ou pelo uso de
cassetes de filme único e fazendo exposições separadas. As
provisões de 6.17.5.devem aplicar-se.
6.17.8.3 Retroespalhamento. Para verificar radiação
de retroespalhamento, um símbolo de chumbo "B", com
altura de 1/2 in [12 mm] e espessura de 1/16 in [2 mm]
deve ser anexado a cada cassete de filme. Se a imagem "B"
aparecer na radiografia, a radiografia deve ser considerada
inaceitável.
6.17.9 Largura do Filme. Larguras de filme devem ser
suficientes para representar partes da junta de solda,
inclusive HAZs, e devem fornecer espaço adicional
suficiente para os IQIs de tipo de orifício requeridos, ou
IQI de arame, e identificação de filme sem infringir a área
de interesse na radiografia.
6.17.10 Qualidade das Radiografias. Todas as
radiografias devem ser livres de marcas mecânicas,
químicas ou outras, na medida em que elas não podem
mascarar ou ser confundidas com a imagem de qualquer
descontinuidade na área de interesse da radiografia. Tais
marcas incluem, entre outros, o seguinte:
(1) embaçamento
(2) defeitos de processamento como listas, marcas
d'água ou manchas químicas
(3) raspaduras, marcas de dedo, ondulações, sujeira,
marcas estáticas, manchas ou rasgões
(4) perda de detalhe devido a contato pobre tela-a-
filme
(5) falsas indicações devido a telas defeituosas ou
falhas internas
6.17.11 Limitações de Densidade. A densidade de filme
transmitida através da imagem radiográfica do corpo do IQI
de tipo orifício requerido e a área de interesse devem ser
1,8 no mínimo para visão única para radiografias feitas com
uma fonte de raio-x e 2,0 no mínimo para radiografias
feitas com uma fonte de raio gama. Para visão composta de
exposições de filme duplas, a densidade mínima deve ser
2,6. Cada radiografia de um conjunto composto deve ter
uma densidade mínima de 1,3. A densidade máxima deve
ser 4,0 para visualização composta ou única.
6.17.11.1 Densidade H & D. A densidade medida
deve ser densidade H & D (densidade radiográfica), que é
uma medida de escurecimento de filme, expressada como:
D = log Io/I
onde:
D = Densidade (radiográfica) de H & D
Io = Intensidade da luz no filme, e
AWS D1.1/D1.1M:2010 6. INSPEÇÃO
228
I = luz transmitida através do filme.
6.17.11.2 Transições. Quando transições de espessura
de solda são radiografadas e a proporção da espessura da
seção mais grossa para a espessura da seção mais fina é 3
ou maior, a radiografia deveria ser exposta para produzir
densidades de filma únicas de 3,0 a 4,0 na seção mais fina.
Quando isso é feito, os requisitos de densidade mínima de
6.17.11 devem ser abandonados a manos que de outra
forma estabelecido nos documentos de contrato.
6.17.12 Marcas de Identificação. Uma marca de
identificação radiográfica e duas marcas de identificação de
localização devem ser colocadas no aço a cada local
radiográfico. Uma marca de identificação radiográfica
correspondente e duas marcas de identificação de
localização, sendo que todas devem ser mostradas na
radiografia, devem ser produzidas pela colocação de
números ou letras de chumbo, ou ambos, sobre cada uma
das marcas de localização e identificação idênticas feitas no
aço, para fornecer um meio de fazer corresponder a
radiografia desenvolvida à solda. Informações de
identificação adicionais devem ser pré-impressas a não
menos que 3/4 in [20 mm] da aresta da solda ou devem ser
produzidas na radiografia pela colocação de caracteres de
chumbo no aço. Informações requeridas a serem mostradas
na radiografia devem incluir a identificação de contrato do
Proprietário, iniciais da empresa RT, iniciais do fabricante,
o número do pedido na loja do fabricante, a marca de
identificação radiográfica, a data e o número de reparo de
solda, se aplicável.
6.17.13 Blocos de Aresta. Blocos de aresta devem ser
usados quando radiografando soldas de topo com espessura
maior que 1/2 [12 mm]. Os blocos de aresta devem ter um
comprimento suficiente para estender-se além de cada lado
da linha de centro da solda por uma distância mínima igual
à espessura da solda, mas não menos que 2 in [50 mm], e
deve ter uma espessura igual ou maior que a espessura da
solda. A largura mínima dos blocos de aresta deve ser igual
a metade da espessura da solda, mas não menos que 1 in
[25 mm]. Os blocos de aresta devem ser centrados na solda
contra a placa sendo radiografada, permitindo uma lacuna
de não mais que 1/16 in [2 mm] para o comprimento
mínimo específico dos blocos de aresta. Blocos de aresta
devem ser feitos de aço radiograficamente limpo e a
superfície deve ter um acabamento de 25 μin 3 μm da
ANSI ou mais liso (ver Figura 6.12).
6.18 Requisitos RT Suplementares
para Conexões Tubulares
6.18.1 Soldas em Chanfro Circunferenciais em Juntas
de Topo. A técnica usada para radiografar juntas de topo
circunferenciais deve ser capaz de cobrir toda a
circunferência. A técnica deve ser preferencialmente
exposição de parede única/visualização de parede única.
Quando a acessibilidade ou o tamanho de cano proíbem
isso, a técnica pode ser exposição de parede
dupla/visualização de parede única ou exposição de parede
dupla/visualização de parede dupla.
6.18.1.1. Exposição de Parede Única/Visualização de
Parede Única. A fonte de radiação deve ser colocada
dentro do cano e o filme no lado de fora do cano (ver
Figura 6.13). Exposição panorâmica pode ser feita se os
requisitos fonte-a-objeto forem satisfeitos; se não, o
mínimo de três exposições deve ser feito. O IQI pode ser
selecionado e colocado no lado da fonte no cano. Se não for
praticável, pode ser colocado no lado do filme no cano.
6.18.1.2. Exposição de Parede Dupla/Visualização de
Parede Única. Quando acesso ou condições geométricas
proíbem exposição de parede única, a fonte pode ser
colocada no lado de fora do cano e o filme na parede oposta
do lado de fora do cano (ver Figura 6.14). Um mínimo de
três exposições deve ser requerido para cobrir a
circunferência completa. O IQI pode ser selecionado e
colocado no lado do filme no cano.
6.18.1.3. Exposição de Parede Dupla/Visualização de
Parede Dupla. Quando o diâmetro do lado de fora do cano
é 3-1/2 in [90 mm] ou menor, ambas as soldas do lado da
fonte e do lado do filme podem ser projetadas no filme e
ambas as paredes visualizadas para aceitação. A fonte de
radiação deve ser deslocada do cano por uma distância que
é pelo menos sete vezes o diâmetro do lado de fora. O
feixe de radiação deve ser deslocado do plano da linha de
centro da solda a um ângulo suficiente para separar as
imagens das soldas do lado da fonte e do lado do filme.
Não deve haver sobreposição das duas zonas interpretadas.
Um mínimo de duas exposições a 90º uma da outra deve
ser requerido (ver Figura 6.15). A solda também pode ser
radiografada pela sobreposição de duas soldas, caso em que
deve haver um mínimo de três exposições a 60º uma da
outra (ver Figura 6.16). Em cada uma dessas duas técnicas,
o IQI deve ser colocado no lado da fonte no cano.
6.19 Exame, Relatório e Disposição de
Radiografias
6.19.1 Equipamento Fornecido pelo Empreiteiro. O
Empreiteiro deve fornecer um iluminador (visualizador) de
intensidade variável adequado com capacidade de revisão
de ponto ou ponto mascarado. O visualizador deve
incorporar um meio de ajustar o tamanho do ponto sob
exame. O visualizador deve ter capacidade suficiente para
iluminar apropriadamente radiografias com densidade H &
D de 4,0. Revisões de filme devem ser feitas em uma área
de luz submetida.
6.19.2 Relatórios. Antes de uma solda sujeita a RT pelo
Empreiteiro para o Proprietário ser aceita, todas as suas
radiografias, inclusive qualquer uma que mostrar qualidade
inaceitável antes de reparo, e um relatório interpretando-as
devem ser submetidos ao Inspetor de Verificação.
6.19.3 Retenção de Relatório. Um conjunto completo de
radiografias para soldas sujeitas a RT pelo Empreiteiro para
o Proprietário, inclusive qualquer uma que mostre
qualidade inaceitável antes de reparo, devem ser entregues
ao Proprietário após a conclusão do trabalho. A obrigação
do Empreiteiro de reter radiografias deve cessar: (1) após
entrega desse conjunto completo para o Proprietário, ou (2)
AWS D1.1/D1.1M:2010 6. INSPEÇÃO
229
um ano inteiro após a conclusão do trabalho do
Empreiteiro, contanto que o Proprietário seja previamente
avisado por escrito.
Parte F
Teste de Ultrassonografia (UT)
de Soldas em Chanfro
6.20 Geral
6.20.1 Procedimentos e Padrões. Os procedimentos e
padrões estabelecidos na Parte F devem governar o UT de
soldas em chanfro e HAZs entre as espessuras de 5/16 in e
8 in [8 mm e 200 mm], quando tal teste é requerido por
6.14 deste código. Para espessuras menores que 5/16 in [8
mm] ou maiores que 8 in [200 mm], o teste deve ser
realizado em conformidade com o Anexo S. Esses
procedimentos e padrões devem ser proibidos para teste em
conexões tubo-a-tubo em T-, Y- ou K-.
6.20.2 Variações. O Anexo S é um exemplo de uma
técnica alternativa para realizar exame UT de soldas em
chanfro. Variações em procedimento de teste,
equipamento e padrões de aceitação não inclusas na Parte F
da Cláusula 6 podem ser usadas com a aprovação do
Engenheiro. Tais variações incluem outras espessuras,
geometrias de solda, tamanhos de transdutor, frequências,
pasta condutiva, superfícies pintadas, técnicas de teste, etc.
Tais variações aprovadas devem ser registradas nos
registros de contrato.
6.20.3 Porosidade de Encanamento. Para detectar
porosidade de encanamento possível, RT é recomendado
para suplementar UT de soldas ESW ou EGW.
6.20.4 Metal Base. Esses procedimentos não têm a
intenção de serem empregados para o teste de
aprovisionamento de metais base. No entanto,
descontinuidades relacionadas com soldagem (trinca,
ruptura lamelar, delaminações, etc.) no metal base
adjacente que não seriam aceitáveis sob as provisões desse
código devem ser relatadas ao Engenheiro para disposição.
6.21 Requisitos de Qualificação.
Ao satisfazer os requisitos de 6.14.6, a qualificação do
operador de UT deve incluir um exame específico e prático
que deve ser baseado nos requisitos desse código. Esse
exame deve requerer que o operador de UT demonstre
habilidade para aplicar as regras desse código na detecção e
disposição precisas de descontinuidades.
6.22 Equipamento UT
6.22.1 Requisitos UT. O instrumento UT deve ser do tipo
eco pulso adequado para uso com transdutores oscilando a
frequências entre 1 e 6 megahertz. O visor deve ser um
rastro de vídeo retificado de escaneador "A".
6.22.2 Linearidade Horizontal. A linearidade horizontal
do instrumento de teste deve ser qualificada sobre a
distância do caminho de som completo a ser usado no teste
em conformidade com 6.30.1.
6.22.3 Requisitos para Instrumentos de Teste.
Instrumentos de teste devem incluir estabilização interna de
forma que após aquecimento, nenhuma variação em
resposta maior que ± 1 dB ocorra com uma modificação de
fornecimento de voltagem nominal de 15% ou, no caso de
uma bateria, ao longo da vida da carga de operação Deve
haver um alarme ou medidor para sinalizar uma queda na
voltagem da bateria antes do desligamento do instrumento
devido a exaustão da bateria.
6.22.4 Calibragem de Instrumentos de Teste. Os
instrumentos de teste devem ter um controle calibrado de
ganho (atenuador) ajustável em etapas distintas de 1 ou 2
dB sobre uma faixa de pelo menos 60 dB. A precisão das
configurações do atenuador deve ser dentro de 1 dB a mais
ou a menos. O procedimento para qualificação deve ser
como descrito em 6.24.2 e 6.30.2.
6.22.5 Faixa de Visor. A faixa dinâmica do visor do
instrumento deve ser tal que uma diferença de 1 dB de
amplitude possa ser facilmente detectada no visor.
6.22.6 Unidades de Busca de Feixe Direto (Onda
Longitudinal). Transdutores de unidade de busca de feixe
direto (onda longitudinal) devem ter uma área ativa de não
menos que 1/2 in2 [323 mm2] e nem mais que 1 in2 [645
mm2]. O transdutor deve ser redondo ou quadrado.
Transdutores devem ser capazes de resolver os três reflexos
como descrito em 6.29.1.3.
6.22.7 Unidades de Busca de Feixe de Ângulo. Unidades
de busca de feixe de ângulo devem consistir de um
transdutor e uma cunha de ângulo. A unidade pode ser
composta de dois elementos separados ou pode ser uma
unidade integral.
6.22.7.1 Frequência. A frequência de transdutor deve
ser entre 2 e 2,5 MHz, inclusive.
6.22.7.2 Dimensões de Transdutor. O cristal
transdutor deve ser quadrado ou retangular na forma e pode
variar de 5/8 a 1 in [15 mm a 25 mm] em largura e de 5/8 in
a 13/16 in [15 mm a 20 mm] em altura (ver Figura 6.17). A
proporção máxima de largura para altura deve ser 1,2 a 1,0,
e a proporção mínima de largura para altura deve ser 1,0 a
1,0.
6.22.7.3 Ângulos. A unidade de busca deve produzir
um feixe sonoro no material sendo testado com 2º a mais
ou a menos de um dos seguintes ângulos apropriados: 70°,
60°, ou 45', como descrito em 6.29.2.2.
6.22.7.4 Marcação. Cada unidade de busca deve ser
marcada para indicar claramente a frequência do transdutor,
ângulo nominal de refração e ponto de índice. O
procedimento de local de ponto de índice é descrito em
6.29.2.1.
AWS D1.1/D1.1M:2010 6. INSPEÇÃO
230
6.22.7.5 Reflexos Internos. Os reflexos internos
máximos permissíveis da unidade de busca devem ser
como descrito em 6.24.3.
6.22.7.6 Distância da Aresta. As dimensões da
unidade de busca devem ser tais que a distância do bordo
de ataque da unidade de busca ao ponto de índice não deve
exceder 1 in [25 mm].
6.22.7.7 Bloco Tipo IIW. O procedimento de
qualificação usando o bloco de referência IIW ou outro
bloco tipo IIW deve estar em conformidade com 6.29.2.6 e
como mostrado na Figura 6.18.
6.23 Padrões de Referência
6.23.1 Norma IIW. Qualquer dos blocos de referência tipo
UT do Instituto Internacional de Soldagem (International
Institute of Welding - IIW) pode ser usado como padrão
para calibragem de distância e sensibilidade, contanto que o
bloco inclua o orifício de diâmetro de 0,060 in [1,5 mm]
como mostrado na Figura 6.19 e recursos de distância,
resolução e verificação de ângulo da Figura 6.23 (posições
de A a G). Blocos tipo IIW devem estar em conformidade
com E 164 da ASTM. Outros blocos portáteis podem ser
usados, contanto que o nível de referência de sensibilidade
para a combinação instrumento/unidade de busca seja
ajustado para ser equivalente àquele alcançado com o bloco
tipo IIW (ver Anexo H para exemplos).
6.23.2 Refletores Proibidos. O uso de um refletor de
"ângulo" para propósitos de calibragem deve ser proibido.
6.23.3 Requisitos de Resolução. A combinação de unidade
e instrumento de busca deve resolver três orifícios no
bloco de teste de referência de resolução RC mostrados na
Figura 6.20. A posição de unidade de busca é descrita em
6.29.2.5. A resolução deve ser avaliada com os controles de
instrumento estabelecidos em configurações normais de
teste e com indicações a partir de orifícios trazidos à altura
de meia tela. A resolução deve ser suficiente para
distinguir pelo menos dois picos de indicações a partir dos
três orifícios. O uso do bloco de referência de resolução RC
para calibragens deve ser proibido. Cada combinação de
instrumento de unidade de busca (sapata e transdutor) deve
ser verificada antes de seu uso inicial. Essa verificação de
equipamento deve ser feita inicialmente com a combinação
de cada unidade de busca e unidade UT. A verificação não
precisa ser feita novamente contanto que seja mantida
documentação que registra os seguintes itens:
(1) Fabricação, modelo e número de série da
máquina de UT
(2) Fabricante, tipo, tamanho, ângulo e número de
série da unidade de busca.
(3) Data de verificação e nome do técnico.
6.24 Qualificação de Equipamento
6.24.1 Linearidade Horizontal. A linearidade horizontal
do instrumento de teste deve ser requalificada em intervalos
de dois meses em cada uma das faixas de distância em que
o instrumento será usado. O procedimento de qualificação
deve estar em conformidade com 6.30.1 (ver Anexo H para
método alternativo).
6.24.2 Controle de Ganho. O controle de ganho de
instrumento (atenuador) deve atender os requisitos de
6.22.4 e deve ser verificado para calibragem correta em
intervalos de dois meses em conformidade com 6.30.2.
Métodos alternativos podem ser usados para qualificação
de controle de ganho calibrado (atenuador) se provado que
equivalente a pelo menos 6.30.2.
6.24.3 Reflexos Internos. Reflexos internos máximos de
cada unidade de busca devem ser verificados a um
intervalo máximo de tempo de 40 horas de uso de
instrumento em conformidade com 6.30.3.
6.24.4 Calibragem de Unidades de Busca de Feixe de
Ângulo. Com o uso de um bloco de calibragem aprovado,
cada unidade de busca de feixe de ângulo deve ser
verificada a cada oito horas de uso para determinar que a
face de contato é plana, que o ponto de entrada de som é
correto e que o feixe de ângulo está dentro da tolerância
permitida de 2º a mais ou a menos em conformidade com
6.29.2.1 e 6.29.2.2. Unidades de busca que não atendem a
esses requisitos devem ser corrigidas ou substituídas.
6.25 Calibragem para Teste
6.25.1 Posição de Controle de Rejeição. Todos os testes e
calibragens devem ser feitos com o controle de rejeição
(corte ou supressão) desligado. O uso do controle de
rejeição (corte ou supressão) pode alterar a linearidade de
amplitude do instrumento e invalidar resultados de teste.
6.25.2 Técnica. A Calibragem para varredura de sensibili-
dade e horizontal (distância) deve ser feita pelo operador
UT logo antes do teste e no local de teste de cada solda.
6.25.3 Recalibragem. A recalibragem deve ser feita após
uma mudança de operadores, a cada intervalo máximo de
tempo de duas horas, ou quando o circuito elétrico sofre
distúrbios de qualquer forma que incluem os seguintes:
(1) Mudança de transdutor
(2) Mudança de bateria
(3) Mudança de tomada elétrica
(4) Mudança de cabo coaxial
(5) Queda de energia (falha)
6.25.4 Teste de Feixe Direto em Metal Base. A
calibragem para teste de feixe direto em metal base deve
ser feita com a unidade de busca aplicada à Face A do
metal base e realizada como segue:
6.25.4.1 Varredura. A varredura horizontal deve ser
ajustada para calibragem de distância para apresentar o
AWS D1.1/D1.1M:2010 6. INSPEÇÃO
231
equivalente de pelo menos duas espessuras de placa no
visor.
6.25.4.2 Sensibilidade. A sensibilidade deve ser
ajustada em um local livre de indicações de forma que o
primeiro reflexo de retorno do lado mais distante da placa
será 50% a 75% da altura total de tela.
6.25.5 Calibragem para Teste de Feixe de Ângulo.
A calibragem para teste de feixe de ângulo deve ser
realizada como segue (ver Anexos H, H2.4 para método
alternativo).
6.25.5.1 Varredura Horizontal. A varredura
horizontal deve ser ajustada para representar a distância
real do caminho de som através do uso de blocos IIW ou
blocos alternativos, como descrito em 6.23.1. A
calibragem de distância deve ser feita usando a escala 5 in
[125 mm] ou a escala 10 in [250 mm] no visor, a que for
apropriada. Se, no entanto, a configuração ou espessura de
junta impede o exame completo da solda em qualquer
dessas configurações, a calibragem de distância deve ser
feita usando as escalas 15 in ou 20 in [400 mm ou 500
mm], como requerido. A posição de unidade de busca é
descrita em 6.29.2.3.
OBSERVAÇÃO: A posição horizontal de todas as
indicações de tela é baseada no local em que o lado
esquerdo da deflexão de traço quebra a linha de base
horizontal.
6.25.5.2 Nível de Referência Zero. A sensibilidade de
nível de referência zero usada para avaliação de
descontinuidade ("b" no relatório de teste de
ultrassonografia, Anexo M, Formulário M-11) deve ser
obtida pelo ajuste do controle de ganho calibrado
(atenuador) do detector de descontinuidade, atendendo aos
requisitos de 6.22, de forma que uma deflexão de traço
maximizada (ajustada a altura de linha de referência
horizontal com controle de ganho calibrado [atenuador])
resulte no visor entre 40% e 60% de altura de tela, em
conformidade com 6.29.2.4.
6.26 Procedimentos de Teste
6.26.1 Linha "X". Uma linha "X" para local de
descontinuidade deve ser marcada na face de teste da
ligação soldada em uma direção paralela ao eixo da solda.
A distância de local perpendicular ao eixo da solda deve ser
baseada nas figuras dimensionais no desenho de detalhe e
geralmente cai na linha de centro de soldas de junta de
topo, e sempre cai na face próxima do membro conector de
soldas de junta de ângulo e em T- (a face oposta à Face C).
6.26.2 Linha "Y". Um "Y" acompanhado de um número
de identificação de solda deve ser claramente marcado no
metal base adjacente à solda que está sujeita a UT. A
marcação é usada para os seguintes propósitos:
(1) Identificação de solda
(2) Identificação da Face A
(3) Medidas de distância e direção (+ ou -) da
linha "X"
(4) Medida de posição das extremidades ou arestas
de solda
6.26.3 Limpeza. Todas as superfícies às quais uma unidade
de busca é aplicada devem estar livres de respingo de solda,
poeira, graxa, óleo (além do usado como pasta condutiva),
tinta e oxidação e deve ter um contorno que permita
acoplamento total.
6.26.4 Pastas condutivas. Um material do tipo pasta
condutiva deve ser usado entre a unidade de busca e o
material de teste. A pasta condutiva deve ser glicerina ou
goma de celulose misturadas a água em uma consistência
adequada. Um agente umidificador pode ser usado se
necessário. Óleo de máquina leve pode ser usado como
pasta condutiva em blocos de calibragem.
6.26.5 Extensão do Teste. Todo o metal base pelo qual a
ultrassonografia precisa passar para testar a solda deve ser
testado para refletores laminares usando uma unidade de
busca de feixe direto em conformidade com os requisitos
de 6.22.6 e calibrada em conformidade com 6.25.4. Se
qualquer área do metal base exibir perda total de reflexo de
retorno ou uma indicação igual ou maior que altura original
de reflexo de retorno é localizada em uma posição que irá
interferir no procedimento normal de escaneamento da
solda, seu tamanho, local e profundidade da face A devem
ser determinados e relatados no relatório UT, e um
procedimento de escaneamento de solda alternativo deve
ser usado.
6.26.5.1 Tamanho do Refletor. O procedimento de
avaliação do tamanho do refletor deve estar em
conformidade com 6.31.1.
6.26.5.2 Inacessibilidade. Se uma parte da solda é
inacessível a teste em conformidade com os requisitos da
Tabela 6.7, devido a conteúdo laminar registrado em
conformidade com 6.26.5, o teste deve ser conduzido
usando um ou mais dos seguintes procedimentos
alternativos conforme necessário para obter cobertura total:
(1) Superfícies de solda devem ser retificadas e
niveladas em conformidade com 5.24.3.1.
(2) Deve ser realizado o teste das Faces A e B. (3)
Outros ângulos de unidade de busca devem ser
usados.
6.26.6 Teste de Soldas. Soldas devem ser testadas usando
uma unidade de busca de feixe de ângulo em conformidade
com os requisitos de 6.22.7 com o instrumento calibrado
em conformidade com 6.25.5 usando o ângulo como
mostrado na Tabela 6.7. Em seguida à calibragem e durante
o teste, o único ajuste de instrumento permitido é o ajuste
de Nível de sensibilidade com o controle de ganho
calibrado (atenuador). O controle de rejeição (corte ou
supressão) deve estar desligado. A sensibilidade deve ser
aumentada a partir do Nível de referência para
escaneamento de solda em conformidade com as Tabelas
6.2 ou 6.3, conforme aplicável.
AWS D1.1/D1.1M:2010 6. INSPEÇÃO
232
6.26.6.1 Escaneamento. O ângulo de teste e
procedimento de escaneamento devem estar em
conformidade com aqueles mostrados na Tabela 6.7.
6.26.6.2 Juntas de Topo. Todas as soldas de junta de
topo devem ser testadas a partir de cada lado do eixo da
solda. Soldas de junta de ângulo ou em T- devem ser
primeiramente testadas a partir de apenas um lado do eixo
da solda. Todas as soldas devem ser testadas usando o
padrão (ou padrões) de escaneamento aplicável mostrado
na Figura 6.21 conforme necessário para detectar
descontinuidades longitudinais e transversais. A intenção é
que, no mínimo, todas as soldas sejam testadas ao passar
som através de todo o volume da solda e o HAZ em duas
direções cruzadas, quando praticável.
6.26.6.3 Indicação Máxima. Quando uma indicação
de descontinuidade aparece na tela, a indicação máxima a
ser obtida de uma descontinuidade deve ser ajustada para
produzir um Nível de referência horizontal de deflexão de
traço no visor. Esse ajuste deve ser feito com o controle de
ganho calibrado (atenuador), e a leitura do instrumento em
decibéis deve ser usada como o “Nível de Indicação, a"
para calcular a "Taxa de Indicação, d" como mostrado no
relatório de teste (Anexo M, Formulário M-11).
6.26.6.4 Fator de Atenuação. O "Fator de Atenuação,
c" no relatório de teste deve ser obtido ao subtrair 1 in [25
mm] da distância de caminho de som e multiplicar o
restante por 2 para Unidades Convencionais dos EUA ou
por 0,08 para Unidades SI. Esse fator deve ser arredondado
para o valor dB mais próximo. Valores fracionais menores
que 1/2 dB devem ser reduzidos para o Nível Db mais
baixo e aqueles de 1/2 dB ou maiores aumentados para o
Nível mais alto.
6.26.6.5 Taxa de Indicação. A "Taxa de Indicação, d"
no Relatório UT, Anexo M, Formulário M-11 representa a
diferença algébrica em decibéis entre o Nível de indicação
e o Nível de referência com correção para atenuação como
indicado nas seguintes expressões:
Instrumentos com ganho em dB:
a-b-c=d
Instrumentos com atenuação em dB:
b-a-c=d
6.26.7 Comprimento das Descontinuidades. O
comprimento da descontinuidades deve ser determinado em
conformidade com o procedimento descrito em 6.31.2.
6.26.8 Bases para Aceitação ou Rejeição. Cada
descontinuidade de solda deve ser aceita ou rejeitada com
base em sua taxa de indicação e seu comprimento, em
conformidade com a Tabela 6.2 para estruturas
estaticamente carregadas ou Tabela 6.3 para estruturas
ciclicamente carregadas, o que for aplicável. Apenas as
descontinuidades que são inaceitáveis precisam ser
registradas no relatório de teste, exceto para soldas
designadas nos documentos de contrato como sendo
"Fratura Crítica", taxas aceitáveis que estão no âmbito de 6
dB, inclusive, da taxa mínima inaceitável devem ser
registrados no relatório de teste.
6.26.9 Identificação de Área Rejeitada. Cada
descontinuidade inaceitável deve ser indicada na solda por
uma marca diretamente sobre a descontinuidade para todo
seu comprimento. A profundidade a partir da superfície e
taxa de indicação devem ser anotados em metal base
próximo.
6.26.10 Reparo. Soldas consideradas inaceitáveis por UT
devem ser reparadas por métodos permitidos por 5.26 desse
código. Áreas reparadas devem ser testadas novamente com
resultados tabulados no formulário original (se disponível)
ou formulários de relatório adicionais.
6.26.11 Relatórios de Reteste. A avaliação de áreas de
solda reparadas e testadas novamente devem ser tabuladas
em uma nova linha no formulário de relatório. Se o
formulário original for usado, um R1, R2... Rn, deve ser o
prefixo do número de indicação. Se formulários de relatório
adicionais forem usados, o R número deve ser prefixo do
número de relatório.
6.26.12 Reforço de Aço. UT de soldas em chanfro CJP
com reforço de aço devem ser realizados com um
procedimento UT que reconhece refletores potenciais
criados pela interface de reforço de metal base (ver
Comentário C-6.26.12 para orientação adicional no
escaneamento de soldas em chanfro contendo reforço de
aço).
6.27 UT de Conexões Tubulares em
T-, Y- e K-.
6.27.1 Procedimento. Todo Ut deve estar em
conformidade com um procedimento escrito que tenha sido
preparado ou aprovado por um indivíduo certificado como
SNT-TC-IA, Nível III, e com experiência em UT de
estruturas tubulares. O procedimento deve ser baseado nos
requisitos dessa seção e da Cláusula 6, Parte F, conforme
aplicável. O procedimento deve conter, no mínimo, as
seguintes informações a respeito de métodos e técnicas UT.
(1) O tipo de configuração de junta de solda a ser
examinado (isto é, a faixa aplicável de diâmetro, espessura
e ângulo diedro local). Técnicas convencionais são
geralmente limitadas a diâmetros de 12-3/4 in [325 mm] ou
mais, espessuras de 1/2 in [12 mm] e acima, e ângulos
diedros locais de 30' ou maiores. Técnicas especiais para
lados menores podem ser usadas, contanto que sejam
qualificadas como descrito aqui, usando o menor lado de
aplicação.
(2) Critérios de aceitação para cada tipo e tamanho
de solda
(3) Tipo(s) de instrumentação UT (fabricação e
modelo)
(4) Frequência de transdutor (unidade de busca),
tamanho e forma da área ativa, feixe de ângulo, e tipo de
cunha em sonda de feixe de ângulo. Procedimentos usando
AWS D1.1/D1.1M:2010 6. INSPEÇÃO
233
transdutores com frequências até 6 MHz, de tamanho até
1/4 in [6 mm], e de forma diferente da especificada em
outra parte, podem ser usados, contanto que estejam
qualificados conforme descrito aqui.
(5) Preparação de superfície e pasta condutiva
(quando usada)
(6) Tipo de bloco de teste de calibragem e refletor de
referência
(7) Método de calibragem e precisão requerida para
distância (varredura), linearidade vertical, distribuição do
feixe, ângulo, sensibilidade e resolução.
(8) Intervalo de calibragem para cada item de (7)
acima.
(9) Método para determinar continuidade acústica de
metal base (ver 6.27.4) e para estabelecer geometria como
uma função de ângulo diedro local e espessura
(10) Padrão e sensibilidade de escaneamento (ver
6.27.5)
(11) Correção de transferência para curvatura e
rugosidade de superfície (quando métodos de amplitude são
usados [ver 6.27.3])
(12) Métodos para determinar ângulo de feixe efetivo
(em material curvo), área de raiz de indexação e locais de
descontinuidade
(13) Método de determinação de comprimento e altura
de descontinuidade
(14) Método de verificação de descontinuidade
durante escavação e reparo
6.27.2 Equipe. Em acréscimo aos requisitos de equipe de
6.14.6, quando exame de conexões em T-, Y- e K- for
realizado, deve ser requerido do operador que demonstre
uma habilidade de aplicar as técnicas especiais requeridas
para tal exame. Testes práticos para esse propósito devem
ser realizados em soldas maquete que representem os tipos
de soldas a serem inspecionadas, incluindo uma faixa
representativa de ângulo diedro e espessura a serem
encontrados na produção, usando os procedimentos
qualificados e aprovados aplicáveis. Cada maquete deve
conter descontinuidades naturais ou artificiais que
produzam indicações UT acima e abaixo dos critérios de
área rejeitada especificados no procedimento aprovado.
O desempenho deve ser julgado com base na habilidade do
operador para determinar o tamanho e classificação de cada
descontinuidade com uma precisão requerida para aceitar
ou rejeitar cada ligação soldada, e localizar precisamente as
descontinuidades inaceitáveis ao longo da solda e na seção
transversal da solda. Pelo menos 70% das descontinuidades
inaceitáveis devem ser corretamente identificadas como
inaceitáveis. Para trabalho em estruturas não redundantes,
cada descontinuidade excedendo sua dimensão máxima
aceitável em um fator ou dois, ou por uma amplitude de 6
dB, deve ser localizada e relatada.
6.27.3. Calibragem. A qualificação de equipamento e
métodos de calibragem de Ut devem atender aos requisitos
do procedimento aprovado e da Cláusula 6, Parte F, exceto
como segue:
6.27.3.1 Faixa. A faixa (distância) de calibragem deve
incluir, como mínimo, toda a distância de caminho de som
a ser usada durante o exame específico. Isso pode ser
ajustado para representar a viagem do caminho de som, a
distância de superfície ou a profundidade equivalente
abaixo da superfície de contato, como descrito no
procedimento aprovado.
6.27.3.2 Calibragem de Sensibilidade. A sensibilidade
padrão para exame de soldas de produção usando técnicas
de amplitude deve ser: sensibilidade básica + correção de
amplitude de distância + correção de transferência. Essa
calibragem deve ser realizada pelo menos uma vez em cada
junta a ser testada; exceto que, para teste repetitivo de
mesmo tamanho e configuração, a frequência de
calibragem de 6.25.3 pode ser usada.
(1) Sensibilidade Básica. Altura de tela de nível de
referência obtida usando reflexo máximo de diâmetro de
orifício de 0,060 in [1,5 mm] no bloco IIW (ou outro bloco
com resultados na mesma sensibilidade básica de
calibragem) como descrito em 6.25 (ou 6.29).
(2) Correção de Amplitude de Distância. O nível de
sensibilidade deve ser ajustado para fornecer atenuação de
perda através da faixa de caminho de som usada pelas
curvas de correção de amplitude de distância, por meios
eletrônicos ou como descrito em 6.26.6.4. Quando
transdutores de alta frequência são usados, a maior
atenuação deve ser levada em conta. Correção de
transferência pode ser usada para acomodar UT através de
camadas estreitas de tinta que não excedam 10 mils [0,25
mm] de espessura.
6.27.4 Exame de Metal Base. Toda a área sujeita a
escaneamento UT deve ser examinada pela técnica de onda
longitudinal para detectar refletores laminares que
poderiam interferir na propagação direcionada de onda de
som pretendida. Todas as áreas contendo refletores
laminares devem ser marcadas para identificação antes do
exame da solda, e as consequências consideradas na
seleção de ângulos de unidade de busca e técnicas de
escaneamento para exame das soldas naquela área. O
Engenheiro deve ser notificado de descontinuidades de
metal base que excedam os limites de 5.15.1.1.
6.27.5 Escaneamento de Solda. Escaneamento de solda de
conexões em T-, Y- e K- deve ser realizado a partir da
superfície do membro de ramificação (ver Figura 6.22).
Todos os exames devem ser feitos nas pernas I e II, quando
possível. Para escaneamento inicial, a sensibilidade deve
ser aumentada em 12 dB acima do estabelecido em 6.27.3
para o caminho de som máximo. Avaliação de identificação
deve ser realizada com referência ao padrão de
sensibilidade.
6.27.6 Ângulo Ideal. Indicações encontradas nas áreas de
raiz de soldas em chanfro em juntas de topo e ao longo da
face de fusão de todas as soldas devem ser melhor
AWS D1.1/D1.1M:2010 6. INSPEÇÃO
234
avaliadas com ângulo de busca de 70º, 60º ou 45º, o que for
mais próximo de ser perpendicular à face de fusão
esperada.
6.27.7 Avaliação de Descontinuidade. Descontinui-dades
devem ser avaliadas pelo uso de uma combinação de limite
de feixe e técnicas de amplitude. Devem ser dados
tamanhos como comprimento e atura (dimensão de
profundidade) ou amplitude, conforme aplicável. A
amplitude deve ser relacionada a "calibragem padrão".
Além disso, descontinuidades devem ser classificadas
como lineares ou planares versus esféricas, pela observação
da alterações em amplitude enquanto o transdutor é
oscilado em um arco centrado no refletor. O local
(posição) de descontinuidades na seção transversal da
solda, assim como a partir de um ponto de referência
estabelecido ao longo do eixo da solda, deve ser
determinado.
6.27.8 Relatórios.
6.27.8.1 Formulários. Um formulário de relatório que
identifica claramente o trabalho e a área de inspeção deve
ser concluído pelo técnico de UT no momento da inspeção.
Um relatório detalhado e um esboço mostrando o local ao
longo do eixo da solda, local na seção transversal da solda,
tamanho (ou taxa de indicação), extensão, orientação e
classificação de cada descontinuidade deve ser concluído
para cada solda em que indicações significativas foram
encontradas.
6.27.8.2 Descontinuidades Relatadas. Quando
especificado, descontinuidades que se aproximam de
tamanho inaceitável, particularmente aquelas sobre as quais
há alguma dúvida na avaliação, também devem ser
relatadas.
6.27.8.3 Inspeção Incompleta. Áreas nas quais a
inspeção completa não foi possível também devem ser
observadas, assim como a razão pela qual a inspeção foi
incompleta.
6.27.8.4 Marcas de Referência. A menos que de outra
forma especificado, a posição de referência e o local e
extensão de descontinuidades inaceitáveis também devem
ser marcados fisicamente na peça.
6.28 Preparação e Disposição de
Relatórios
6.28.1 Conteúdo dos Relatórios. da solda. Um exemplo
de tal formulário é mostrado no Anexo M, Formulário M-
11. Um formulário de relatório que identifica claramente o
trabalho e a área de inspeção deve ser concluído pelo
operador de UT no momento da inspeção. O formulário de
relatório para soldas que são inaceitáveis precisa apenas
conter informações suficientes para identificar a solda, o
operador (assinatura) e a aceitabilidade.
6.28.2 Relatórios Antes da Inspeção. Antes de uma solda
sujeita a UT pelo Empreiteiro para o Proprietário ser aceita,
todos os relatórios de formulários pertencendo à solda,
inclusive qualquer que mostre qualidade inaceitável antes
de reparo, devem ser submetidos ao Inspetor.
6.28.3 Relatórios Concluídos. Um conjunto completo de
formulários de relatório de soldas sujeitas a UT pelo
Empreiteiro para o Proprietário, inclusive qualquer uma
que mostre qualidade inaceitável antes de reparo, devem
ser entregues ao Proprietário após a conclusão do trabalho.
A obrigação do Empreiteiro de manter relatórios de UT
deve cessar:(1) após entrega desse conjunto completo para
o Proprietário, ou (2) um ano inteiro após a conclusão do
trabalho do Empreiteiro, contanto que o Proprietário seja
previamente avisado por escrito.
6.29 Calibragem da unidade de UT
com Blocos Tipo IIW ou Outros
Blocos de Referência Aprovados
(Anexo H).
Ver 6.23 e Figuras 6.19, 6.20 e 6.23.
6.29.1 Modo Longitudinal
6.29.1.1 Calibragem de Distância. Ver Anexo H. H1
para método alternativo.
(1) O transdutor deve ser colocado na posição G no
bloco tipo IIW.
(2) O instrumento deve ser ajustado para produzir
indicações em 1 in [25 mm em um bloco métrico]. 2 in [50
mm em um bloco métrico]. 3 in [75 mm em um bloco
métrico]. 4 in [100 mm em um bloco métrico]. Etc., no
visor.
6.29.1.2 Amplitude. Ver Anexo H. H1.2 para Método
alternativo. (1) O transdutor deve ser colocado na posição
G no bloco tipo IIW. (2) O ganho deve ser ajustado até que
a indicação maximizada do primeiro reflexo de retorno
alcance 50 a 75% da altura de tela.
6.29.1.3 Resolução
(1) O transdutor deve ser colocado na posição F no
bloco IIW.
(2) Transdutor e instrumento devem solucionar todas as
três distâncias.
6.29.1.4 Qualificação de Linearidade Horizontal. O
procedimento de qualificação deve ser por 6.24.1.
6.29.1.5 Qualificação de Controle de Ganho
(Atenuação). O procedimento de qualificação deve estar
em conformidade com 6.24.2, ou um método alternativo
em conformidade com 6.24.2 deve ser usado.
6.29.2 Modo de Onda de Cisalhamento (Transversal)
6.29.2.1 Ponto de Índice. O ponto de entrada de som
do transdutor (ponto de índice) deve ser localizado ou
verificado pelo seguinte procedimento:
AWS D1.1/D1.1M:2010 6. INSPEÇÃO
235
(1) O transdutor deve ser colocado na posição D no
bloco tipo IIW.
(2) O transdutor deve ser movido até que o sinal do raio
esteja maximizado. O ponto no transdutor que se alinha
com a linha de raio no bloco de calibragem é o ponto de
entrada de som (ver Anexo H.H2.1 para Método
alternativo).
6.29.2.2 Ângulo. O ângulo de caminho de som do
transdutor deve ser verificado ou determinado por um dos
seguintes procedimentos:
(1) O transdutor deve ser colocado na posição B no
bloco tipo IIW para ângulos de 40' a 60' ou na posição C
no bloco IIW para ângulos de 60º a 70º (ver Figura 6.23).
(2) Para o ângulo selecionado, o transdutor deve ser
movido para a frente e para trás sobre a linha indicativa do
ângulo transdutor até que o sinal do raio seja maximizado.
O ponto de entrada no transdutor deve ser comparado com
a marca de ângulo no bloco de calibragem (tolerância de ±
2º) (ver Anexo H. H2.2 para métodos alternativos).
6.29.2.3 Procedimento de Calibragem de Distância.
O transdutor deve ser colocado na posição D em um bloco
tipo IIW (qualquer ângulo). O instrumento deve ser então
ajustado para alcançar uma indicação em 4 in [100 mm em
um bloco métrico] e uma segunda indicação em 8 in [200
mm em um bloco métrico] ou 9 in [225 mm em um bloco
métrico] (Ver Anexo H.H2.3 para Métodos alternativos).
6.29.2.4 Procedimento de Calibragem de
Sensibilidade ou Amplitude. O transdutor deve ser
colocado na posição A no bloco tipo IIW (qualquer
ângulo). O sinal maximizado deve então ser ajustado a
partir do orifício de 0,060 in [1,59 mm] para alcançar uma
linha de referência horizontal de indicação de altura (ver
Anexo H.H2.4 para Método alternativo). A leitura decibel
máxima permitida deve ser usada como a leitura de "Nível
de Referência b" na planilha de Relatório de Teste (Anexo
M, Formulário M-11) em conformidade com 6.23.1.
6.29.2.5 Resolução
(1) O transdutor deve ser colocado na posição Q do
bloco RC para ângulo de 70º, posição R para ângulo de 60º
ou posição S para ângulo de 45º.
(2) Transdutor e instrumento devem solucionar os três
orifícios de teste, pelo menos na extensão de distinguir os
picos de indicações dos três orifícios.
6.29.2.6 Distância de Abordagem da Unidade de
Busca. A distância mínima permissível entre a
extremidade da unidade de busca e a aresta do bloco tipo
IIW deve ser como segue (ver Figura 6.18):
para transdutor de 70°,
X= 2 in [50 mm]
para transdutor de 60°,
X= 1-7/16 in [37 mm]
para transdutor de 45°,
X= 1 in [25 mm]
6.30 Procedimentos de Qualificação
de Equipamento
6.30.1 Procedimento de Linearidade Horizontal.
OBSERVAÇÃO: Como esse procedimento de qualificação
é realizado com uma unidade de busca de feixe direto que
produz ondas longitudinais com uma velocidade de som
que é quase o dobro de ondas de cisalhamento, é
necessário dobrar as faixas de distância de onda de
cisalhamento a serem usadas ao aplicar esse
procedimento.
Exemplo: O uso de uma calibragem de tela de 10 in [250
mm] em onda de cisalhamento requereria uma calibragem
de tela de 20 in [500 mm] para esse procedimento de
qualificação.
O procedimento a seguir deve ser usado para qualificação
de instrumento (ver Anexo H, H3, para método
alternativo):
(1) Uma unidade de busca de feixe direto deve ser
acoplada atendendo os requisitos de 6.22.6 para o bloco
tipo IIW ou bloco DS na Posição G, T ou U (ver Figura
6.23), conforme necessário para alcançar cinco reflexos de
retorno na faixa de qualificação sendo certificada (ver
Figura 6.23).
(2) O primeiro e o quinto reflexos de retorno devem ser
ajustados a seus próprios locais com uso da calibragem de
distância e zero ajustes de atraso.
(3) Cada indicação deve ser ajustada ao Nível de
referência com o controle de ganho ou atenuação para
exame local horizontal.
(4) Cada local de deflexão de traço intermediário deve
ser corrigida no âmbito de 2% da largura da tela.
6.30.2 Precisão de dB
6.30.2.1 Procedimento. OBSERVAÇÃO: Para atingir
a precisão requerida ( ± 1%) na leitura da altura de
indicação, o visor deve ser graduado verticalmente a
intervalos de 2%, ou 2,5% para instrumento com leitura
digital de amplitude, a altura horizontal de meia tela.
Essas graduações devem ser colocadas no visor entre 60%
e 100% da altura de tela. Isso pode ser alcançado com o
uso de uma sobreposição de tela transparente graduada.
Se essa sobreposição é aplicada como uma parte
permanente da unidade UT, deveria ser tomado cuidado
para que a camada não obscureça os visores normais de
teste.
(1) Uma unidade de busca de feixe direto deve ser
acoplada atendendo aos requisitos de 6.22.6 para o bloco
DS mostrado na Figura 6.20 e posição "T", Figura 6.23.
(2) A calibragem de distância deve ser ajustada de
forma que a primeira indicação de reflexo de retorno de 2
in [50 mm] (de agora em diante chamada de indicação)
esteja na meia tela horizontal.
AWS D1.1/D1.1M:2010 6. INSPEÇÃO
236
(3) O ganho calibrado ou controle de atenuação deve
ser ajustado de forma que a indicação esteja exatamente
em, ou levemente acima, de 40% de altura de tela.
(4) A unidade de busca deve ser movida em direção à
posição U, ver Figura 6.23, até que a indicação esteja
exatamente em 40% da altura de tela.
(5) A amplitude de som deve ser aumentada 6 dB
com o ganho calibrado ou controle de atenuação. O nível
de indicação teoricamente deveria ser exatamente em 80%
da altura de tela.
(6) A leitura dB deve ser registrada sob "a" e a % real
de altura de tela sob "b" a partir da etapa 5 no relatório de
certificação (Anexo M, Formulário M-8), Linha L.
(7) A unidade de busca deve ser movida em direção à
posição U, Figura 6.23, até que a indicação esteja
exatamente em 40% da altura de tela.
(8) A Etapa 5 deve ser repetida.
(9) A Etapa 6 deve ser repetida; exceto que as
informações deveriam ser aplicadas para a próxima linha
consecutiva no Anexo M, Formulário M-8.
(10) As Etapas 7, 8 e 9 devem ser repetidas
consecutivamente até que a faixa completa do controle de
ganho (atenuador) seja atingida (mínimo de 60 dB).
(11) As informações das Fileiras "a" e "b" devem ser
aplicadas à equação 6.30.2.2 ou o nomograma descrito em
6.30.2.3 para calcular o dB corrigido.
(12) O dB corrigido da etapa 11 a Fileira "c" deve ser
aplicado.
(13) O valor da Fileira "c" deve ser subtraído do valor
da Fileira "a" e a diferença na Fileira "d", erro dB, deve ser
aplicada.
OBSERVAÇÃO: Esses valores podem ser positivos ou
negativos e assim anotados. Exemplos de Aplicação de
Formulários M-8, M-9 e M-10 são encontrados no Anexo
M.
(14) As informações devem ser tabuladas em um
formulário, incluindo informação mínima equivalente como
exibido no Formulário M-8, e a unidade avaliada em
conformidade com instruções mostradas naquele
formulário.
(15) O Formulário M-9 fornece um meio
relativamente simples de avaliar dados do item (14).
Instruções para essa avaliação são dadas de (16) a (18).
(16) A informação dB da Fileira "e" (Formulário M-8)
deve ser aplicada verticalmente e a leitura dB da Fileira "a"
(Formulário M-8) horizontalmente como coordenadas X e
Y para delinear a curva dB no Formulário M-9.
(17) O comprimento horizontal mais longo, como
representado pela diferença de leitura dB, que pode ser
inscrito em um retângulo representando 2 dB em altura,
denota a faixa dB na qual o equipamento atende aos
requisitos do código. A faixa mínima permissível é 60 dB.
(18) Equipamento que não atende a esse requisito
mínimo pode ser usado, contanto que fatores de correção
sejam desenvolvidos e usados para avaliação de
descontinuidade fora da faixa de linearidade aceitável do
instrumento, ou que o teste de solda e avaliação de
descontinuidade sejam mantidos dentro da faixa de
linearidade vertical aceitável do equipamento.
OBSERVAÇÃO: Os números de erro dB (Fileira "d")
podem ser usados como números de fator de correção.
6.30.2.2 Equação Decibel. A seguinte equação deve
ser usada para calcular decibéis:
dB2 - dB1 =
dB2 = B1
Como relacionado no Anexo M, Formulário M-8.
dB1 = Fileira "a"
dB2 = Fileira "c"
%1 = Fileira "b"
%2 = Definida no Formulário M-8
6.30.2.3 Anexo M. As seguintes observações aplicam-
se ao uso do nomograma no Anexo M, Formulário M-10:
(1) Fileiras, b, c, d, e e estão na planilha de certificação,
Anexo M, Formulário M-8.
(2) As escalas A, B, e C estão no nomograma, Anexo
M, Formulário M-10.
(3) Os zero pontos na escala C devem ser prefixados ao
adicionar o valor necessário para corresponder com as
configurações do instrumento; isto é, 0, 10, 20, 30, etc.
6.30.2.4 Procedimento. Os seguintes procedimentos
devem aplicar-se ao uso do nomograma no Anexo M,
Formulário M-10:
(1) Deve ser estendida uma linha direta entre a leitura
de decibel da Fileira "a" aplicada à escala C e a
percentagem correspondente da Fileira "b" aplicada à
escala A.
(2) O ponto em que a linha direta da etapa 1 cruza a
linha pivô B como um ponto pivô para uma segunda linha
direta deve ser usado.
(3) Uma segunda linha direta a partir do ponto médio
de % na escala A através do ponto pivô desenvolvido na
etapa 2 e para a escala dB C deve ser estendida.
(4) esse ponto na escala C é indicativo de dB corrigido
para uso na Fileira "c".
6.30.2.5 Nomograma. Para um exemplo de uso do
nomograma, ver Anexo M, Formulário M-10.
6.30.3 Procedimento de Reflexos Internos.
(1) Calibrar o equipamento em conformidade com
6.25.5.
AWS D1.1/D1.1M:2010 6. INSPEÇÃO
237
(2) Remover a unidade de busca do bloco de
calibragem sem alterar qualquer outro ajuste de
equipamento.
(3) Aumentar o ganho calibrado ou atenuação a 20 dB
mais sensível que o Nível de referência.
(4) A área de tela além do caminho de som de 1/2 in
[12 mm] e acima da altura de nível de referência deve ser
livre de qualquer indicação.
6.31 Procedimentos de Avaliação de
Tamanho de Descontinuidade
6.31.1 Teste de Feixe Direto (Longitudinal). O tamanho
de descontinuidades lamelares não é sempre facilmente
determinado, especialmente aqueles que são menores que o
tamanho do transdutor. Quando a descontinuidade é maior
que o transdutor, uma perda total de reflexo de retorno irá
ocorrer e uma perda de 6 dB de amplitude e medida para a
linha de centro do transdutor é geralmente confiável para
determinar arestas de descontinuidade. No entanto, a
avaliação de tamanho aproximado daqueles refletores, que
são menores que o transdutor, deve ser feita começando do
lado de fora da descontinuidade com equipamento
calibrado em conformidade com 6.25.4 e movendo o
transdutor em direção à área de descontinuidade até que
comece a se formar uma indicação no visor. O bordo de
ataque da unidade de busca nesse ponto é indicativo da
aresta de descontinuidade.
6.31.2 Teste de Feixe de Ângulo (Cisalhamento). O
procedimento a seguir deve ser usado para determinar
comprimentos de indicações que têm taxas de dB mais
sérias que uma indicação de Classe D. O comprimento de
tal indicação deve ser determinado pela medida da distância
entre os locais de linha de centro do transdutor em que a
amplitude de taxa de indicação cai 50% (6 dB) abaixo da
taxa para a classificação de descontinuidade aplicável. Esse
comprimento deve ser registrado sob "comprimento de
descontinuidade" no relatório de teste. Quando garantido
pela amplitude da descontinuidade, esse procedimento deve
ser repetido para determinar o comprimento das
descontinuidades de Classe A, B e C
6.32 Padrões de Escaneamento (Ver
Figura 6.21)
6.32.1 Descontinuidades Longitudinais
6.32.1.1 Movimento de Escaneamento A. Ângulo de
rotação a= 10°.
6.32.1.2 Movimento de Escaneamento B. A distância
de escaneamento b deve ser tal que a seção de solda sendo
testada seja coberta.
6.32.1.3 Movimento de Escaneamento C. A distância
de progressão c deve ser aproximadamente metade da
largura do transdutor.
OBSERVAÇÃO: Os movimentos A, E e C podem ser
combinados em um padrão de escaneamento.
6.32.2 Descontinuidades Transversais
6.32.2.1 Soldas Retificadas. O padrão de
escaneamento D deve ser usado quando as soldas são
retificadas e niveladas.
6.32.2.2 Soldas Não Retificadas. O padrão de
escaneamento E deve ser usado quando o reforço de solda
não é retificado e nivelado. Ângulo de escaneamento e=15º
máx.
OBSERVAÇÃO: O padrão de escaneamento deve cobrir
toda a seção de solda.
6.32.3 Soldas ESW ou EGW (Padrão de Escaneamento
Adicional). Padrão de Escaneamento E, Ângulo de rotação
da unidade de busca e entre 45º e 60º.
OBSERVAÇÃO: O padrão de escaneamento deve cobrir
toda a seção de solda.
6.33 Exemplos de Certificação de
Precisão dB
O Anexo M mostra exemplos do uso dos Formulários M-8,
M-9 e M-10 para a solução para uma aplicação típica de
6.30.2.
Parte G
Outros Métodos de Exame
6.34 Requisitos Gerais
Essa parte contém métodos NDT não abordados nas
Partes D, E ou F da Cláusula 6 desse código. Os métodos
NDT estabelecidos na Parte G podem ser usados como uma
alternativa para os métodos esboçados nas Partes D, E ou F
da Cláusula 6, contanto que os procedimentos, critérios de
qualificação para procedimentos e equipe e critérios de
aceitação sejam documentados por escrito e aprovados pelo
Engenheiro.
6.35 Sistemas de Imagem por
Radiação.
O exame de soldas pode ser realizado usando métodos de
radiação por ionização além de RT, como imagem
eletrônica, inclusive sistemas de imagem em tempo real. A
sensibilidade de tal exame como visto no sistema de
monitoramento (quando usado para aceitação e rejeição) e a
mídia de gravação não devem ser menores que o requerido
para RT.
AWS D1.1/D1.1M:2010 6. INSPEÇÃO
238
6.35.1 Procedimentos. Procedimentos por escrito devem
conter as seguintes variáveis essenciais:
(1) Identificação do equipamento incluindo
fabricante, fabricação, modelo e número de série,
(2) Configuração de controle de radiação e imagem
para cada combinação de variáveis estabelecidas aqui,
(3) Faixas de espessura da solda,
(4) Tipos de junta da solda,
(5) Velocidade de escaneamento,
(6) Fonte de radiação para distância de solda,
(7) Tela de conversão de imagem para distância de
solda,
(8) Ângulo de raios-X através da solda (a partir de
normal),
(9) Local IQI (lado da fonte ou lado da tela),
(10) Tipo de mídia de gravação (gravação de vídeo,
filme fotográfico, filme ou outras mídias aceitáveis),
(11) Aprimoramento de computador (se usado),
(12) Largura do feixe de radiação,
(13) Protocolo e critérios de aceitação de
caracterização de indicação, se diferentes desse código.
6.35.2 IQI. O tipo de arame IQI, como descrito na Parte B,
deve ser usado. A colocação de IQI deve ser como
especificado na Parte B para exame estático. Para exame
em movimento, a colocação deve ser como segue:
(1) Dois IQIs posicionados a cada extremidade de área de
interesse e rastreados com a execução,
(2) Um IQI em cada extremidade da execução e
posicionado a uma distância não maior que 10 pés (3 m)
entre quaisquer dois IQIs durante a execução.
6.36 Sistemas de Ultrassonografia
Avançados
Sistemas de Ultrassonografia Avançados incluem, entre
outros, sonda múltipla, sistemas multicanais, inspeção
automatizada, difração de tempo de vôo (TOFD), e
sistemas de conjunto em fase.
6.36.1 Procedimentos. Procedimentos por escrito devem
conter as seguintes variáveis essenciais:
(1) Identificação do equipamento incluindo fabricante,
fabricação, modelo e números de série,
(2) Tipo de sondas, inclusive tamanho, forma e
ângulo para conjuntos em fase: número de elementos
transdutores por sonda, ângulo de feixe, distância focal,
tamanho do ponto focal e frequência (MHz),
(3) Configurações de controle de escaneamento para
cada combinação de variáveis estabelecida aqui,
(4) Procedimento de configuração e calibragem para
equipamento e sondas usando padrões industriais ou
amostras de mão-de-obra,
(5) Faixas de espessura da solda,
(6) Tipo de junta da solda,
(7) Velocidades de escaneamento,
(8) Número de sondas,
(9) Ângulo de escaneamento,
(10) Tipo de scan (A, B, C, outro)
(11) Tipo de mídia de gravação (gravação de vídeo,
assistida por computador ou outras mídias aceitáveis),
(12) Aprimoramento com base em computador (se
usado),
(13) Identificação de software de computador (se
usado),
(14) Protocolo e critérios de aceitação de
caracterização de indicação, se diferentes desse código.
6.37 Requisitos Adicionais.
6.37.1 Qualificação de Procedimento. Procedimentos
devem ser qualificados pelo teste do método NDT (sistema)
e da mídia de gravação para estabelecer e gravar todas as
variáveis e condições essenciais. O teste de qualificação
deve consistir de determinar que cada combinação das
variáveis essenciais ou faixas de variáveis pode fornecer a
sensibilidade mínima requerida. Os resultados de teste
devem ser gravados na mídia de gravação que será usada
para exame de produção. Os procedimentos devem ser
aprovados por um indivíduo qualificado como SNT-TC-IA
da ASNT, Nível III (ver 6.37.2).
6.37.2 Qualificações de Equipe. Além das qualificações
de equipe de 6.14.6, o seguinte deve aplicar-se.
(1) Nível III - deve ter um mínimo de seis meses de
experiência usando o mesmo equipamento e procedimento,
ou similar, para exame de soldas em materiais metálicos de
encanamento ou estruturais.
(2) Níveis l e II - deve ser certificado pelo Nível III
acima e ter um mínimo de três meses de experiência usando
o mesmo equipamento e procedimento, ou similar, para
exame de soldas em materiais metálicos de cano ou
estruturais. A qualificação deve consistir de exames
práticos e escritos para demonstrar capacidade de usar o
equipamento e procedimentos a serem usados para exame
de produção.
6.37.3 Aprimoramento de Imagem. Aprimoramento
computadorizado das imagens gravadas deve ser aceitável
para melhorar a imagem gravada e obter informações
adicionais, contanto que a sensibilidade e precisão mínimas
AWS D1.1/D1.1M:2010 6. INSPEÇÃO
239
da caracterização de descontinuidades sejam mantidas.
Imagens aprimoradas por computador devem ser
claramente marcadas indicando que o aprimoramento foi
usado e identificando os procedimentos de aprimoramento.
6.37.4 Registros- Exames de Radiação de Imagem.
Exames, que são usados para aceitação e rejeição de soldas,
devem ser registrados em uma mídia aceitável. Os registros
devem ser em movimento ou estáticos, o que for usado para
aceitar ou rejeitar soldas. Um registro escrito deve ser
incluído com as imagens gravadas fornecendo as seguintes
informações, no mínimo:
(1) Identificação e descrição de soldas examinadas
(2) Procedimento(s) usado(s)
(3) Equipamento usado
(4) Local das soldas na mídia de registro
(5) Resultados, inclusive uma lista de soldas
inaceitáveis e reparos, e suas localizações na mídia de
registro.
AWS D1.1/D1.1M:2010 6. INSPEÇÃO
240
Tabela 6.1
Critérios de Aceitação de Inspeção Visual (ver 6.9)
Categoria de Descontinuidade e Critério de Inspeção
Conexões
Não
Tubulares
Estaticamente
Carregadas
Conexões
Não
Tubulares
Ciclicamente
Carregadas
Conexões
Tubulares
(Todas as
Cargas)
(1) Proibição de Trinca
Qualquer trinca deve ser inaceitável, a despeito do tamanho ou local X X X
(2) Fusão de Metal Base/de Solda
Deve existir fusão completa entre camadas adjacentes de metal de solda e entre metal de solda e metal base X X X
(3) Seção Transversal de Cratera
Todas as crateras devem ser preenchidas para fornecer o tamanho de solda especificado, exceto pelas extremidades
de soldas de filete descontínuas fora de seu comprimento efetivo
X X X
(4) Perfis de Solda
Perfis de solda devem estar em conformidade com 5 24 X X X
(5) Tempo de lnspeção
Inspeção visual de soldas em todos os aços pode começar imediatamente após as soldas finalizadas terem resfriado
até a temperatura ambiente Critérios de aceitação para aços A 514, A 517, e A 709 Grau 100 e 100 W da ASTM
devem ser baseados em inspeção visual realizada não menos que 48 horas após a finalização da solda
X X X
(6) Soldas de Tamanho Menor
O tamanho de uma solda de filete em qualquer solda contínua pode ser menor que o tamanho nominal especificado
(L) sem correção pelas seguintes quantias (U):
X X X
L,
tamanho de solda nominal especificado, in [mm]
≤ 3/ 6 5
1/4 [6]
≥5 6 8
U,
decréscimo permissível a partir de L, in [mm]
≤ / 6 2
≤ 3/32 2 5
≤ /8 3
Em todos os casos, a porção de tamanho menor da solda não deve exceder 10% do comprimento da solda Para
soldas braçadeira-a-flange em traves, subutilização de capacidade deve ser proibida nas extremidades por um
comprimento igual a duas vezes a largura da flange
7) Mordedura
(A) Para material com espessura menor que 1 in [25 mm] , a mordedura não deve exceder 1/32 in [1 mm], com a
seguinte exceção: a mordedura não deve exceder 1116 in [2 mm] para qualquer comprimento acumu1ado até 2 in
[50 mm] em quaisquer 12 in [300 mm] Para material com espessura igual ou maior que 1 in [25 mm], a mordedura
não deve exceder 1116 in [2 mm] para qualquer comprimento de solda
X
(B) Em membros primários, a mordedura não deve ser mais profunda que 0,01 in [0,25 mm] quando a solda é
transversal à tensão de tração sob qualquer condição de projeto de carga A mordedura não deve ser mais profunda
que 1132 in [1 mm] para todos os outros casos
X X
(8) Porosidade
(A) Soldas em chanfro CJP em juntas de topo transversais à direção da tensão de tração computada não devem ter
porosidade de cano visível Para todas as outras soldas em chanfro e para soldas de filete, a soma de porosidade de
cano visível de diâmetro de 1/32 in [1 mm] ou maior não deve exceder 3/8 in [10 mm] em qualquer polegada linear
de solda e não deve exceder 3/4 in [20 mm] em qualquer comprimento de solda de 12 in [300 mm]
X
(B) A frequência de porosidade de cano em soldas de filete não deve exceder uma em cada 4 in [100 mm] de
comprimento de solda e o diâmetro máximo não deve exceder 3/32 in [2,5 mm] Exceção: para soldas de filete
conectando reforços a braçadeira, a soma dos diâmetros de porosidade de cano não deve exceder 3/8 in [1O mm] em
qualquer polegada linear de solda e não deve exceder 3/4 in [20 mm] em qualquer comprimento de solda de 12 in
[300 mm]
X X
(C) Soldas em chanfro CJP em juntas de topo transversais à direção da tensão de tração computada não deve ter
porosidade de cano Para todas as outras soldas em chanfro, a frequência de porosidade de cano não deve exceder
uma em 4 in [100 mm] de comprimento e o diâmetro máximo não deve exceder 3/32 in [2,5 mm]
X X
Observação: Um "X" indica aplicabilidade para o tipo de conexão; uma área sombreada indica não aplicabilidade.
AWS D1.1/D1.1M:2010 6. INSPEÇÃO
241
Tabela 6.2
Critérios de Aceitação -Rejeição UT (Conexões Não Tubulares Estaticamente
Carregadas) (ver 6131 e C-6 26 6 )
Classe de
Severidade da
Descontinuidade
Tamanho de Soldaa em polegadas [mm] e Ângulo da Unidade de Busca
5/16
a
3/4
[8–20]
> 3/4
a
1-1/2
[20-38] > 1-1/2 a 2-1/2 [38-65] > 2-1/2 a 4 [65-100] > 4 a 8 [I 00-200]
70 70 70 60 45 70 60 45 70 60 45
Classe A
+5 &
abaixo
+2 &
abaixo
-2 &
abaixo
+1 &
abaixo
+3 &
abaixo
-5 &
abaixo
-2 &
abaixo
0 &
abaixo
-7 &
abaixo
-4 &
baixo
-1 &
abaixo
Classe B
+6 +3
-1
0
+2
+3
+4
+5
-4
-3
-1
0
+1
+2
-6
-5
-3
-2
0
+1
Classe C
+7 +4
+1
+2
+4
+5
+6
+7
–2 a
+2
+1
+2
+3
+4
–4 a
+2
–1 a
+2
+2
+3
Classe D +8
&
acima
+5
&
acima
+3
&
acima
+6
&
acima
+8
&
acima
+3
&
acima
+3
&
acima
+5
&
acima
+3
&
acima
+3
&
acima
+4
&
acima
a
O tamanho de solda em juntas de topo deve ser a espessura nominal da mais fina das duas partes sendo anexadas.
Observações:
1. Descontinuidades de classe B e C devem ser separadas por pelo manos 2L, L sendo o comprimento da descontinuidade mais longa, exceto
que quando duas ou mais de tais descontinuidades não estão separadas por pelo menos 2L, mas o comprimento combinado de
descontinuidades e sua distância de separação é igual ou menor que o comprimento máximo permissível sob as provisões da Classe B ou C, a
descontinuidade deve ser considerada uma descontinuidade única aceitável.
2. Descontinuidades de classe B e C não devem começar a uma distância menor que 2L das extremidades de solda carregando tensão de tração
primária, L sendo o comprimento da descontinuidade.
3. Descontinuidades detectadas em “nível de varredura” na área de face de raiz de juntas de solda em chanfro duplo CJP devem ser avaliadas
usando uma taxa de indicação 4 dB mais sensível que o descrito em 6.26.6.5 quando tais soldas são designadas como “soldas de tensão” no
desenho (subtrair 4 dB da taxa de indicação “d”). Isso não deve aplicar-se se a junta de solda é goivada por trás a metal estável para remover
a face de raiz e MT usados para verificar que a face de raiz foi removida.
4. ESW ou EGW: Descontinuidades detectadas em “nível de varredura” que excedam 2 in 5 mm em comprimento devem ser suspeitas de
terem porosidade de cano e devem ser melhor avaliadas com radiografia.
5. Para indicações que permanecem na tela enquanto a unidade de busca é movida, consulte 6.13.1.
Classe A (descontinuidades grandes)
Qualquer indicação nessa categoria deve ser rejeitada
(a despeito de comprimento).
Níveis de Varredura
Classe B (descontinuidades medianas)
Qualquer indicação nessa categoria tendo um comprimento maior que
3/4 in [20 mm] deve ser rejeitada.
Caminho estávelb
em polegadas
[mm]
Acima de Zero
Referência, dB
Classe C (descontinuidades pequenas)
Qualquer indicação nessa categoria tendo um comprimento maior que
2 in [50 mm] deve ser rejeitada.
até 2-1/2 [65 mm]
> 2-1/2 a 5 [65–125 mm]
> 5 a 10 [125–250 mm]
> 10 a 15 [250-380 mm]
14
19
29
39
Classe D (descontinuidades menores)
Qualquer indicação nessa categoria deve ser aceita a despeito de
comprimento ou local na solda.
b
Essa coluna refere-se a distância de caminho estável; NÃO espessura
de material.
AWS D1.1/D1.1M:2010 6. INSPEÇÃO
242
Tabela 6.3
Critérios de Aceitação-Rejeição UT (Conexões Não Tubulares Ciclicamente
Carregadas) (ver 6.13.2 e C-6.26.6 )
Classe de
Severidade da
Descontinuidade
Tamanho de Soldaa em polegadas [mm] e Ângulo da Unidade de Busca
5/16
até
3/4
[8-20]
> 3/4
até
1-1/2
[20-38] > 1-1/2 até 2-1/2 [38-65] > 2-1/2 até 4 [65-100] > 4 até 8 [100-200]
70 70 70 60 45 70 60 45 70 60 45
Classe A
+10 &
abaixo
+8 &
abaixo
+4 &
abaixo
+7 &
abaixo
+9 &
abaixo
+1 &
abaixo
+4 &
abaixo
+6 &
abaixo
-2 &
abaixo
+1 &
abaixo
+3 &
abaixo
Classe B
+11 +9
+5
+6
+8
+9
+10
+11
+2
+3
+5
+6
+7
+8
-1
0
+2
+3
+4
+5
Classe C
+12 +10
+7
+8
+10
+11
+12
+13
+4
+5
+7
+8
+9
+10
+1
+2
+4
+5
+6
+7
Classe D +13
&
acima
+11
&
acima
+9
&
acima
+12
&
acima
+14
&
acima
+6
&
acima
+9
&
acima
+11
&
acima
+3
&
acima
+6
&
acima
+8
&
acima
a
O tamanho de solda em juntas de topo deve ser a espessura nominal da mais fina das duas partes sendo anexadas.
Observações:
1. Descontinuidades de classe B e C devem ser separadas por pelo manos 2L, L sendo o comprimento da descontinuidade mais longa, exceto
que quando duas ou mais de tais descontinuidades não estão separadas por pelo menos 2L, mas o comprimento combinado de
descontinuidades e sua distância de separação é igual ou menor que o comprimento máximo permissível sob as provisões da Classe B ou C, a
descontinuidade deve ser considerada uma descontinuidade única aceitável.
2. Descontinuidades de classe B e C não devem começar a uma distância menor que 2L das extremidades de solda carregando tensão de tração
primária, L sendo o comprimento da descontinuidade.
3. Descontinuidades detectadas em “nível de varredura” na área de face de raiz de juntas de solda em chanfro duplo CJP devem ser avaliadas
usando uma taxa de indicação 4 dB mais sensível que o descrito em 6.26.6.5 quando tais soldas são designadas como “soldas de tensão” no
desenho (subtrair 4 dB da taxa de indicação “d”). Isso não deve aplicar-se se a junta de solda é goivada por trás a metal estável para remover
a face de raiz e MT usados para verificar que a face de raiz foi removida.
4. Para indicações que permanecem na tela enquanto a unidade de busca é movida, consulte 6.13.2.1.
Classe A (descontinuidades grandes)
Qualquer indicação nessa categoria deve ser rejeitada (a despeito de
comprimento). Níveis de Varredura
Classe B (descontinuidades medianas)
Qualquer indicação nessa categoria tendo um comprimento maior que
3/4 in [20 mm] deve ser rejeitada.
Caminho estávelb
em polegadas
[mm]
Acima de Zero
Referência, dB
Classe C (descontinuidades pequenas)
Qualquer indicação nessa categoria tendo um comprimento maior que
2 in [50 mm] na metade ou comprimento de 3/4 in [20 mm] em um
quarto do topo ou fundo da espessura de solda deve ser rejeitado.
até 2-1/2 [65 mm]
> 2-1/2 até 5 [65–125 mm]
> 5 até 10 [125–250 mm]
> 10 até 15 [250-380 mm]
20
25
35
45
Classe D (descontinuidades menores)
Qualquer indicação nessa categoria deve ser aceita a despeito do
comprimento ou local na solda
b
Essa coluna refere-se a distância de caminho estável; NÃO espessura
de material.
.
AWS D1.1/D1.1M:2010 6. INSPEÇÃO
243
Tabela 6.4
Requisitos IQI de Tipo de Orifício (ver 6.17.1)
Espessura
Nominal de Materiala
Faixa, in
Espessura
Nominal de Materiala
Faixa, mm
Lado Fonte Lado Filmeb
Designação
Orifício
Essencial
Designação
Orifício
Essencial
Até 0,25 incl. Até 6 incl. 10 4T 7 4T
Acima de 0,25 até 0,375 Acima de 6 até 10 12 4T 10 4T
Acima de 0,375 até 0,50 Acima de 10 até 12 15 4T 12 4T
Acima de 0,50 até 0,625 Acima de 12 até 16 15 4T 12 4T
Acima de 0,625 até 0,75 Acima de 16 até 20 17 4T 15 4T
Acima de 0,75 até 0,875 Acima de 20 até 22 20 4T 17 4T
Acima de 0,875 até 1,00 Acima de 22 até 25 20 4T 17 4T
Acima de 1,00 até 1,25 Acima de 25 até 32 25 4T 20 4T
Acima de 1,25 até 1,50 Acima de 32 até 38 30 2T 25 2T
Acima de 1,50 até 2,00 Acima de 38 até 50 35 2T 30 2T
Acima de 2,00 até 2,50 Acima de 50 até 65 40 2T 35 2T
Acima de 2,50 até 3,00 Acima de 65 até 75 45 2T 40 2T
Acima de 3,00 até 4,00 Acima de 75 até 100 50 2T 45 2T
Acima de 4,00 até 6,00 Acima de 100 até 150 60 2T 50 2T
Acima de 6,00 até 8,00 Acima de 150 até 200 80 2T 60 2T
a
Espessura radiográfica de parede única (para tubulares).
b
Aplicável apenas a estruturas tubulares.
Tabela 6.5
Requisitos IQI de Arame (ver 6.17.1)
Espessura Material Nominala
Faixa, in
Espessura Material
Nominala
Faixa, mm
Lado Fonte
Diâmetro Máximo de Arame
Lado Filmeb
Diâmetro Máximo de Arame
in mm in mm
Até 0,25 incl. Até 6 incl. 0,010 0,25 0,008 0,20
Acima de 0,25 até 0,375 Acima de 6 até 10 0,013 0,33 0,010 0,25
Acima de 0,375 até 0,625 Acima de 10 até 16 0,016 0,41 0,013 0,33
Acima de 0,625 até 0,75 Acima de 16 até 20 0,020 0,51 0,016 0,41
Acima de 0,75 até 1,50 Acima de 20 até 38 0,025 0,63 0,020 0,51
Acima de 1,50 até 2,00 Acima de 38 até 50 0,032 0,81 0,025 0,63
Acima de 2,00 até 2,50 Acima de 50 até 65 0,040 1,02 0,032 0,81
Acima de 2,50 até 4,00 Acima de 65 até 100 0,050 1,27 0,040 1,02
Acima de 4,00 até 6,00 Acima de 100 até 150 0,063 1,60 0,050 1,27
Acima de 6,00 até 8,00 Acima de 150 até 200 0,100 2,54 0,063 1,60
a
Espessura radiográfica de parede única (para tubulares).
b
Aplicável apenas a estruturas tubulares.
AWS D1.1/D1.1M:2010 6. INSPEÇÃO
244
Tabela 6.6
Seleção e Colocação de IQI (ver 6.17.7)
Tipos IQI
Igual T
≥ in 25 mm L
Igual T
< 10 in [250 mm] L
Desigual T
≥ in 25 mm L
Desigual T
< 10 in [250mm] L
Orifício
Arame
Orifício
Arame
Orifício
Arame
Orifício
Arame
Número de IQIs
Cano Periférico
Não Tubular
2 2
3 3
1 1
3 3
3 2
3 3
2 1
3 3
Seleção Norma ASTM -
Tabela
Figuras
E 1025 E747
6,4 6,5
6,8
E 1025 E 747
6,4 6,5
6,9
E 1025 E 747
6,4 6,5
6,10
E 1025 E747
6,4 6,5
6,11
T = Espessura nominal do metal base (T1 e T2 de Figuras).
L = Comprimento da Solda na área de interesse de cada radiografia.
Observação: T pode ser aumentado para fornecer a espessura de reforço de solda permissível contanto que calços sejam usados sob IQIs de
orifício por 6.17.3.3.
AWS D1.1/D1.1M:2010 6. INSPEÇÃO
245
Tabela 6.7
Ângulo de Teste (ver 6.26.5.2)
Gráfico de Procedimento
Espessura do Material, in [mm]
Aplicação
5/16 [8]
até
1-1/2 [38]
> 1-1/2 [38]
até
1-3/4 [45]
> 1-3/4 [45]
até
2-1/2 [60]
> 2-1/2 [60]
até
3-1/2 [90]
> 3-1/2 [90]
até
4-1/2 [110]
> 4-1/2 [110]
até
5 [130]
> 5 [130]
até
6-1/2 [160]
> 6-1/2 [160]
até
7 [180]
>7 [180]
até
8 [200]
* * * * * * * * *
Junta de Topo 1 O 1 F
1G
ou
4
F
1G
ou
5
F
6
ou
7
F
8
ou
10
F
9
ou
11
F
12
ou
13
F 12 F
Junta em T 1 O 1
F
ou
XF
4
F
ou
XF
5
F
ou
XF
7
F
ou
XF
10
F
ou
XF
11
F
ou
XF
13
F
ou
XF
— —
Junta de
Ângulo
1 O 1
F
ou
XF
1G
ou
4
F
ou
XF
1G
ou
5
F
ou
XF
6
ou
7
F
ou
XF
8
ou
10
F
ou
XF
9
ou
11
F
ou
XF
13
ou
14
F
ou
XF
— —
ESW/EGW
Soldas
1 O 1 O
1G
ou
4
1**
1G
ou
4
P1
ou
P3
6
ou
7
P3
11
ou
15
P3
11
ou
15
P3
11
ou
15
P3
11
ou
15**
P3
Observações:
1. Quando possível, todos os exames devem ser feitos a partir da Face A e na Perna 1, a menos que de outra forma especificado nessa Tabela.
2. Áreas de raiz de juntas de solda em chanfro que têm reforço que não requer remoção por contrato devem ser testadas na Perna 1, quando
possível, com a Face A sendo aquela oposta ao reforço. (Retificação da face de solda ou teste de faces de solda adicionais podem ser
necessários para permitir a varredura completa da raiz de solda.)
3. Exames na Perna II ou III devem ser feitos apenas para satisfazer provisões dessa Tabela ou quando necessário para testar áreas de solda
tornadas inacessíveis por uma superfície de solda não retificada, ou interferência com outras partes da ligação soldada, ou para atender aos
requisitos de 6.26.6.2.
4. Um máximo de Perna III deve ser usado apenas quando a espessura ou geometria previne o escaneamento de áreas de solda completas e
HAZs na Perna I ou Perna II.
5. Em soldas de tensão em estruturas ciclicamente carregadas, o quarto do topo da espessura deve ser testado com a perna final de som
progredindo da Face B em direção à Face A, o quarto do fundo da espessura deve ser restado com a perna final de som progredindo da Face
A em direção à Face B; isto é, o quarto do topo da espessura deve ser testado ou a partir da Face A na Perna II ou a partir da Face B na Perna
I, conforme opção do Empreiteiro, a menos que especificado de outra forma nos documentos de contrato.
6. A face de solda indicada deve ser nivelada por retificação usando o procedimento 1G, 6, 8, 9, 12, 14 ou 15. A face A para ambos os
membros conectados deve estar no mesmo plano.
(ver legenda na próxima página)
AWS D1.1/D1.1M:2010 6. INSPEÇÃO
246
Tabela 6.7 (Continuação)
Ângulo de Teste (ver 6.26.5.2)
Legenda:
X — Verificação a partir da Face “C.”
G — Retificar face de solda nivelada.
O — Não requerido.
Face A — a face do material a partir da qual o escaneamento é feito (em juntas em T- e de ângulo, seguir os esboços acima).
Face B — oposta à face “A” (mesma placa).
Face C — a face oposta à solda no membro conector ou em uma junta em T- ou de ângulo.
* — Requerido apenas quando a exibição de indicação de altura de referência de descontinuidade é observada na interface de metal do
metal base, enquanto buscando em nível de escaneamento com procedimentos primários selecionados da primeira coluna.
** — Usar calibragem de distância de tela de 15 in [400 mm] ou 20 in [500 mm].
P — Pitch and catch deve ser conduzido para maiores avaliações de descontinuidade em apenas metade da espessura do material apenas
com transdutores de 45 ou 70 de igual especificação, ambos de frente para a solda. (Transdutores precisam ser seguros por um
suporte para controlar o posicionamento - ver esboço). Calibragem de amplitude para pitch and catch é normalmente feita por
calibragem de uma única unidade de busca. Quando é feita uma alteração para unidades de busca duais para inspeção pitch and
catch, deveria haver asseguração de que essa calibragem não muda como um resultado de variáveis de instrumento.
F — Indicações de interface de metal de metal base de solda devem ser melhor avaliadas com um transdutor de 70 , 60 ou 45 - o
caminho de som que for mais próximo de ser perpendicular à superfície de fusão suspeitada.
Legenda de Procedimento
Área de Espessura de Solda
N
Topo
Quarto
Metade
Metade
Fundo
Quarto
1 70 70 70
2 60 60 60
3 45 45 45
4 60 70 70
5 45 70 70
6 70 G A 70 60
7 60 B 70 60
8 70 G A 60 60
9 70 G A 60 45
10 60 B 60 60
11 45 B 70 ** 45
12 70 G A 45 70 G B
13 45 B 45 45
14 70 G A 45 45
15 70 G A 70 A B 70 G B
AWS D1.1/D1.1M:2010 6. INSPEÇÃO
247
Legenda para as Figuras 6.1, 6.2, e 6.3
Dimensões de Descontinuidades
B= Dimensão máxima permitida de uma descontinuidade
radiografada.
L= A maior dimensão de uma descontinuidade radiografada.
L' = A maior dimensão de descontinuidades adjacentes.
C= Liberação mínima medida ao longo do eixo longitudinal da solda
entre arestas de descontinuidades de porosidade ou do tipo fusão
(a maior das descontinuidades adjacentes governa), o intersecção.
C1 =Distância mínima permitida entre a descontinuidade mais próxima
e a aresta livre de uma placa ou tubular, ou a intersecção de uma
solda longitudinal com uma solda periférica, medida em paralelo
ao eixo de solda longitudinal.
W= Dimensão menor de cada das descontinuidades adjacentes.
Definições de Descontinuidades
• Uma descontinuidade alongada deve ter a sua maior dimensão (L) 3
vezes maior que a menor dimensão.
• Uma descontinuidade arredondada deve ter a sua maior dimensão
(L) menor ou igual a 3 vezes a menor dimensão.
• Um agrupamento deve ser definido como um grupo de
descontinuidades não alinhadas, de tamanho aceitável, adjacentes
individuais com espaçamento menor que o mínimo permitido (C)
para a maior descontinuidade adjacente individual (L'), mas com a
soma das maiores dimensões (L) de todas as descontinuidades no
agrupamento igual ou menor que o tamanho de descontinuidade
individual máximo permissível (B). Tais agrupamentos devem ser
considerados como descontinuidades individuais de tamanho L para
o propósito de avaliar o espaçamento mínimo.
• Descontinuidades alinhadas devem ter os eixos principais de cada
descontinuidade aproximadamente alinhados.
Dimensões Materiais
E= Tamanho da solda.
T= Espessura da placa ou cano para soldas em chanfro CJP.
AWS D1.1/D1.1M:2010 6. INSPEÇÃO
248
Notas
1 – Para determinar o tamanho máximo da descontinuidade permitida em qualquer junta ou tamanho da solda, projetar E
horizontalmente sobre B.
2 – Para determinar o mínimo de folga permitida entre as arestas de descontinuidades de qualquer tamanho maior ou igual a 3/32
in [2,5 mm], projetar B verticalmente sobre C
3 – ver Legenda na página XXX para definições.
Figura 6.1 – Critérios de Aceitação de Descontinuidade para Conexões Não
Tubulares Estaticamente Carregadas e Conexões Tubulares Estaticamente ou
Ciclicamente Carregadas (ver 6.12.1)
AWS D1.1/D1.1M:2010 6. INSPEÇÃO
249
a
A Descontinuidade alongada pode ser localizada quer na solda “A” ou na solda “B”. Para o propósito desta ilustração, a
descontinuidade “B” foi localizada na solda “B”.
Caso I – Descontinuidade na Intersecção da Solda
Figura 6.1 (Continuação) – Critérios de Aceitação de Descontinuidade para
Conexões Não Tubulares Estaticamente Carregadas e Conexões Tubulares
Estaticamente ou Ciclicamente Carregadas (ver 6.12.1)
AWS D1.1/D1.1M:2010 6. INSPEÇÃO
250
Caso II – Descontinuidade na Aresta Livre da Solda em Chanfro CJP
Figura 6.1 (Continuação) – Critérios de Aceitação de Descontinuidade para
Conexões Não Tubulares Estaticamente Carregadas e Conexões Tubulares
Estaticamente ou Ciclicamente Carregadas (ver 6.12.1)
AWS D1.1/D1.1M:2010 6. INSPEÇÃO
251
Caso III – Descontinuidade na Intersecção da Solda
Figura 6.1 (Continuação) – Critérios de Aceitação de Descontinuidade para
Conexões Não Tubulares Estaticamente Carregadas e Conexões Tubulares
Estaticamente ou Ciclicamente Carregadas (ver 6.12.1)
AWS D1.1/D1.1M:2010 6. INSPEÇÃO
252
Caso IV – Descontinuidade na Aresta Livre da Solda em Chanfro CJP
Figura 6.1 (Continuação) – Critérios de Aceitação de Descontinuidade para
Conexões Não Tubulares Estaticamente Carregadas e Conexões Tubulares
Estaticamente ou Ciclicamente Carregadas (ver 6.12.1)
AWS D1.1/D1.1M:2010 6. INSPEÇÃO
253
Notas
1. Para determinar o tamanho máximo da descontinuidade permitida em qualquer junta ou tamanho da solda, projetar E
horizontalmente sobre B.
2. Para determinar o mínimo de folga permitida entre as arestas de descontinuidades de qualquer tamanho, projetar B
verticalmente sobre C
3. ver Legenda na página 55 para definições.
Figura 6.2 – Critérios de Aceitação de Descontinuidade para Conexões Não
Tubulares Ciclicamente Carregadas em Tensão (Limitações de Porosidade e
Descontinuidades de Fusão) (ver 6.12.2.1)
AWS D1.1/D1.1M:2010 6. INSPEÇÃO
254
Caso I – Descontinuidade na Intersecção da Solda
Figura 6.2 (Continuação)– Critérios de Aceitação de Descontinuidade para
Conexões Não Tubulares Ciclicamente Carregadas em Tensão (Limitações de
Porosidade e Descontinuidades de Fusão)
(ver 6.12.2.1)
AWS D1.1/D1.1M:2010 6. INSPEÇÃO
255
Caso II - Descontinuidade na Aresta Livre da Solda em Chanfro CJP
Figura 6.2 (Continuação) - Critérios de Aceitação de Descontinuidade para
Conexões Não Tubulares Ciclicamente Carregadas em Tensão (Limitações de
Porosidade e Descontinuidades de Fusão) (ver 6.12.2.1)
AWS D1.1/D1.1M:2010 6. INSPEÇÃO
256
Caso III – Descontinuidade na Intersecção da Solda
Figura 6.2 (Continuação)– Critérios de Aceitação de Descontinuidade para
Conexões Não Tubulares Ciclicamente Carregadas em Tensão (Limitações de
Porosidade e Descontinuidades de Fusão) (ver 6.12.2.1)
AWS D1.1/D1.1M:2010 6. INSPEÇÃO
257
Caso IV - Descontinuidade na Aresta Livre da Solda em Chanfro CJP
Figura 6.2 (Continuação)– Critérios de Aceitação de Descontinuidade para
Conexões Não Tubulares Ciclicamente Carregadas em Tensão (Limitações de
Porosidade e Descontinuidades de Fusão) (ver 6.12.2.1)
AWS D1.1/D1.1M:2010 6. INSPEÇÃO
258
a
O tamanho máximo de uma descontinuidade localizada no âmbito dessa distância de uma aresta ou placa deve ser 1/8 in [3
mm], mas uma descontinuidade de 1/8 in [3 mm] deve ser 1/4 in [6 mm] ou mais distante da aresta. A soma de descontinuidades
menores que 1/8 in [3 mm] em tamanho e localizadas no âmbito dessa distância da aresta não deve exceder 3/16 in [5 mm].
Descontinuidades de 1/16 in [2 mm] a menos de 1/8 in [3 mm] não devem ser restritas em outros locais a menos que estejam
separadas por menos de 2 L (L sendo o comprimento da maior descontinuidade); caso em que as descontinuidades devem ser
medidas como um comprimento igual ao comprimento total das descontinuidades e espaço e avaliadas como mostrado nessa
figura.
Notas
1. Para determinar o tamanho máximo da descontinuidade permitida em qualquer junta ou tamanho da solda, projetar E
horizontalmente sobre B.
2. Para determinar o mínimo de folga permitida entre as arestas de descontinuidades de qualquer tamanho, projetar B
verticalmente sobre C
3. ver Legenda na página 55 para definições.
Figura 6.3 – Critérios de Aceitação de Descontinuidade para Conexões Não
Tubulares em Compressão (Limitações de Porosidade ou Descontinuidades do
AWS D1.1/D1.1M:2010 6. INSPEÇÃO
259
Tipo Fusão)
(ver 6.12.2.2)
Caso I - Descontinuidade na Intersecção da Solda
Figura 6.3 (Continuação) – Critérios de Aceitação de Descontinuidade para
Conexões Não Tubulares em Compressão (Limitações de Porosidade e
Descontinuidades do Tipo Fusão)
(ver 6.12.2.2)
AWS D1.1/D1.1M:2010 6. INSPEÇÃO
260
Caso II - Descontinuidade na Aresta Livre da Solda em Chanfro CJP
Figura 6.3 (Continuação) – Critérios de Aceitação de Descontinuidade para
Conexões Não Tubulares em Compressão (Limitações de Porosidade ou
Descontinuidades do Tipo Fusão)
(ver 6.12.2.2)
AWS D1.1/D1.1M:2010 6. INSPEÇÃO
261
Caso III - Descontinuidade na Intersecção da Solda
Figura 6.3 (Continuação) – Critérios de Aceitação de Descontinuidade para
Conexões Não Tubulares em Compressão (Limitações de Porosidade ou
Descontinuidades do Tipo Fusão)
(ver 6.12.2.2)
AWS D1.1/D1.1M:2010 6. INSPEÇÃO
262
Caso IV – Descontinuidades no âmbito de 5/8 in [16 mm] em uma Aresta Livre
Caso V – Descontinuidades Separadas por Menos de 2L em Qualquer Local da
Solda (Usar Gráfico da Dimensão “B” da Figura 6.3 para Falha Única)
Figura 6.3 (Continuação) – Critérios de Aceitação de Descontinuidade para
Conexões Não Tubulares em Compressão (Limitações de Porosidade ou
Descontinuidades do Tipo Fusão)
(ver 6.12.2.2)
AWS D1.1/D1.1M:2010 6. INSPEÇÃO
263
a
Refletores internos lineares ou planares acima do padrão de sensibilidade (exceto raiz de conexões únicas soldadas em T-, Y-, e
K- [ver Figura 6.5]).
b
Refletores menores (acima do nível de desconsideração e incluindo padrão de sens bilidade (exceto raiz de conexões únicas
soldadas em T-, Y-, e K- [ver Figura 6.5]). Refletores adjacentes separados por menos do que seu comprimento médio devem ser
tratados como contínuos.
Figura 6.4 – Indicações da Classe R (ver 6.13.3.1)
AWS D1.1/D1.1M:2010 6. INSPEÇÃO
264
a
Descontinuidades de área de raiz que caiam fora da solda teórica (dimensões “tw” ou “L” nas Figuras 3.8, 3.9, e 3.10) devem ser
desconsideradas.
Figura 6.4 (Continuação) - Indicações da Classe R (ver 6.13.3.1)
AWS D1.1/D1.1M:2010 6. INSPEÇÃO
265
Observações:
1. Descontinuidades alinhadas separadas por menos
de (L1+L2)/2 e descontinuidades paralelas
separadas por menos de (H1+H2)/2 devem ser
avaliadas como contínuas.
2. Descontinuidades acumulativas devem ser avaliadas
sobre comprimento da solda de 6 in [150 mm] ou
D/2 (o que for menor), onde o diâmetro do tubo =D.
DESCONTINUIDADES DE RAIZ K-, Y-, E T-
Observações:
1. Para solda CJP em conexões tubulares únicas
soldadas em T,Y e Y feitas sem reforço.
2. Descontinuidades em soldagem de backup na raiz,
Detalhes C e D das Figuras 3.8, 3.9, e 3.10 deverão
ser desconsideradas
REFLETORES INTERNOS E
TODAS OUTRAS SOLDAS
a
Refletores abaixo da sensibilidade padrão
(ver 6.13.3.2) deverão ser desconsideradas.
Observação: Descontinuidades que estão entre H ou
tw/6 da superfície externa deverão ser
dimensionadas como se se estendessem à superfície
da solda.
Figura 6.5 – Indicações da Classe X (ver 6.13.3.2)
AWS D1.1/D1.1M:2010 6. INSPEÇÃO
266
Tabela de Dimensões de IQI
(in)
Númeroa
A B C D E F
Tolerâncias de Espessura e do Diâmetro
do Orifício de IQI
5–20
1,500
± 0,015
0,750
± 0,015
0,438
± 0,015
0,250
± 0,015
0,500
± 0,015
0,250
± 0,030
± 0,0005
21–59
1,500
± 0,015
0,750
± 0,015
0,438
± 0,015
0,250
± 0,015
0,500
± 0,015
0,250
± 0,030
± 0,0025
60–179
2,250
± 0,030
1,375
± 0,030
0,750
± 0,030
0,375
± 0,030
1,000
± 0,030
0,375
± 0,030
± 0,005
Tabela de Dimensões de IQI
(mm)
Númeroa
A B C D E F
Tolerâncias de Espessura e do Diâmetro
do Orifício de IQI
5–20
38,10
± 0,38
19,05
± 0,38
11,13
± 0,38
6,35
± 0,38
12,70
± 0,38
6,35
± 0,80
± 0,013
21–59
38,10
± 0,38
19,05
± 0,38
11,13
± 0,38
6,35
± 0,38
12,70
± 0,38
6,35
± 0,80
± 0,06
60–179
57,15
± 0,80
34,92
± 0,80
19,05
± 0,80
9,52
± 0,80
25,40
± 0,80
9,525
± 0,80
± 0,13
a
IQIs No. 5 até 9 não são 1T, 2T, e 4T.
Nota: Orifícios devem ser verdadeiros e normais para IQI. Não chanfrar.
Figura 6.6 – IQI Tipo Orifício (ver 6.17.1)
(Reimpresso com permissão da American Society for Testing and Materials, copyright.)
AWS D1.1/D1.1M:2010 6. INSPEÇÃO
267
Tamanhos da Imagem Indicadora de Qualidade (Penetrâmetro de Arame)
Diâmetro de Arame, in [mm]
Posição A Posição B Posição C Posição D
0,0032 [0,08] 0,010 [0,25] 0,032 [0,81] 0,10 [2,5]
0,004 [0,1] 0,013 [0,33] 0,040 [1,02] 0,125 [3,2]
0,005 [0,13] 0,016 [0,4] 0,050 [1,27] 0,160 [4,06]
0,0063 [0,16] 0,020 [0,51] 0,063 [1,6] 0,20 [5,1]
0,008 [0,2] 0,025 [0,64] 0,080 [2,03] 0,25 [6,4]
0,010 [0,25] 0,032 [0,81] 0,100 [2,5] 0,32 [8]
Figura 6.7—IQI de Arame (ver 6.17.1)
(Reimpresso com permissão da American Society for Testing and Materials, copyright.)
AWS D1.1/D1.1M:2010 6. INSPEÇÃO
268
a
Colocação alternada IQI do lado da fonte permitida para aplicações tubulares e outras aplicaçãoes quando aprovadas pelo
Engenheiro.
Figura 6.8—Identificação RT e Locais de Tipo-Orifício ou IQI de Arame em Juntas
de Espessura Aproximadamene Igual a 10 in [250 mm] e Maiores em
Comprimento
(ver 6.17.7)
AWS D1.1/D1.1M:2010 6. INSPEÇÃO
269
a
Colocação alternada IQI do lado da fonte permitida para aplicações tubulares e outras aplicaçãoes quando aprovadas pelo
Engenheiro.
Figura 6.9—Identificação RT e Locais de Tipo-Orifício ou IQI de Arame em Juntas
de Espessura Aproximadamene Igual ou menores que 10 in [250 mm] em
Comprimento
(ver 6.17.7)
AWS D1.1/D1.1M:2010 6. INSPEÇÃO
270
a
Colocação alternada IQI do lado da fonte permitida para aplicações tubulares e outras aplicaçãoes quando aprovadas pelo
Engenheiro.
Figura 6.10—Identificação RT e Locais de Tipo-Orifício ou IQI de Arame em
Juntas de Transição de 10 in [250 mm] e Maiores em Comprimento (ver 6.17.7)
AWS D1.1/D1.1M:2010 6. INSPEÇÃO
271
a
Colocação alternada IQI do lado da fonte permitida para aplicações tubulares e outras aplicaçãoes quando aprovadas pelo
Engenheiro.
Figura 6.11—Identificação RT e Locais de Tipo-Orifício ou IQI de Arame em
Juntas de Espessura menores que 10 in [250 mm] em Comprimento (ver 6.17.7)
Figura 6.12 – Blocos de Aresta RT (ver 6.17.13)
AWS D1.1/D1.1M:2010 6. INSPEÇÃO
272
Figura 6.13 – Exposição de Parede Única – Vista de Parede Única (ver 6.18.1.1)
Figura 6.14 – Exposição de Parede Dupla – Vista de Parede Única (ver 6.18.1.2)
AWS D1.1/D1.1M:2010 6. INSPEÇÃO
273
Figura 6.15 – Exposição de Parede Dupla – Vista de Parede Dupla (Elíptica),
Mínimo de Duas Exposições (ver 6.18.1.2)
Figura 6.16 – Exposição de Parede Dupla – Vista de Parede Dupla (Elíptica),
Mínimo de Três Exposições (ver 6.18.1.3)
AWS D1.1/D1.1M:2010 6. INSPEÇÃO
274
Figura 6.17- Cristal Transdutor (ver 6.22.7.2)
Figura 6.18 – Procedimento de Qualificação da Unidade de Busca
Usando Bloco de Referência IIW (ver 6.22.7.7)
AWS D1.1/D1.1M:2010 6. INSPEÇÃO
275
Observações
1. A tolerância dimensional entre todas as superfícies no referenciamento ou calibração deverá estar entre ±0,005 in [0,13 mm] da
dimensão detalhada.
2. O acabamento da superfície de todas as superfícies para os quais o som é aplicado ou refletido deve ter uma máximo de 125
μ
in [3.17 μ
m] r.m.s.
3. Todo material deve ser ASTMA 36 ou acousticamente equivalente.
4. Todos orifícios deverão ter um acabamento interno suave e deverão ser perfurados a 90º da superfície do material.
5. Marcadores de identificação e linhas de grau deverão ser identadas na superfície do material para que se mantenha uma
orientação permananente.
6. Estas notas aplicam-se a todos os esboços nas Figuras 6.19 e 6.20.
Figura 6.19 – Bloco Típico do Tipo IWW (ver 6.23.1)
AWS D1.1/D1.1M:2010 6. INSPEÇÃO
276
Figura 6.20 - Blocos de Qualificação (ver 6.23.3)
AWS D1.1/D1.1M:2010 6. INSPEÇÃO
277
Figura 6.20 (Continuação) – Blocos de Qualificação (ver 6.23.3) (Métrico)
AWS D1.1/D1.1M:2010 6. INSPEÇÃO
278
Observações:
1. Padrões de teste são todos simétricos em torno do eixo da solda, com exceção do padrão D, que deve ser conduzido
diretamente sobre o eixo da solda.
2. Testes de ambos os lados do eixo da solda deverão ser feitos onde for mecanicamente possível.
Figura 6.21 – Visão de Plano de Padrões de Escaneamento UT (ver 6.32)
AWS D1.1/D1.1M:2010 6. INSPEÇÃO
279
Figura 6.22 – Técnicas de Escaneamento (ver 6.27.5)
AWS D1.1/D1.1M:2010 6. INSPEÇÃO
280
Figura 6.23 – Posições do Transdutor (Típico) (ver 6.29)
AWS D1.1/D1.1M:2010
281
Página intencionalmente em branco
AWS D1.1/D1.1M:2010
282
7. Soldagem de Pinos
7.1 Escopo
A cláusula 7 contém os requisitos gerais para a soldagem
de pinos de aço em aço e estabelece requisitos específicos:
(1) Para as propriedades mecânicas e materiais de pinos
de aço e requisitos para a qualificação das bases de pinos;
(2) Para os testes de qualificação de aplicação,
qualificação do operador, testes de pré-produção e mão de
obra;
(3) Para a soldagem do pino durante a produção,
fabricação, montagem e inspeção.
(4) Para a certificação do fabricante do pino de
soldabilidade da base de pino.
NOTA: Aços aprovados; para pinos, ver 7.2.6; para metais
de base, ver Tabela 3.1 (Grupos I e II). Para orientações,
ver C7.6.1.
7.2 Requisitos gerais
7.2.1 Projeto do pino. O projeto dos pinos deve ser
adequado para soldagem a arco a peças de aço com uso de
equipamento de soldagem de pino cronometrado. O tipo e o
tamanho do pino devem ser os especificados pelos
desenhos, especificações ou disposições especiais. Para
pinos com cabeça, ver Figura 7.1. Podem ser usadas
configurações de cabeçote alternativas, mediante
comprovação de testes mecânicos e encaixe que confirmem
o desenvolvimento da força total do projeto e mediante
aprovação do Engenheiro.
7.2.2 Proteções para arcos. Uma proteção para arcos
(virola) de cerâmica resistente a calor ou outro material
adequado deve ser fornecida com cada pino.
7.2.3 Fluxo. Um desoxidante adequado e um fluxo de
estabilização para soldagem a arco devem ser fornecidos
com cada pino de 5/16 in [8 mm] de diâmetro ou maior.
Pinos menores que 5/16 in [8 mm] de diâmetro podem ser
fornecidos com ou sem fluxo.
7.2.4 Bases de pinos. Uma base de pino, para ser
qualificada, deverá ter sido aprovada no teste descrito em
7.9. Deverão ser utilizados apenas pinos com bases
qualificadas. A classificação das bases de pinos em
conformidade com 7.9 deve ficar a cargo do fabricante. A
proteção para arcos utilizada na produção deve ser a mesma
utilizada em testes de qualificação ou como recomendado
pelo fabricante. Quando solicitado pelo engenheiro, o
contratante deverá fornecer as seguintes informações:
(1) Uma descrição do pino e da proteção para arcos
(2) Certificação do fabricante de que a base do pino foi
classificada em conformidade com 7.9.
(3) Dados de testes de qualificação
7.2.5 Acabamento do pino.
7.2.5.1 O acabamento do pino deve ser feito por
recalcamento da cabeça, laminação ou usinagem. Os pinos
finalizados devem ter qualidade e condições uniformes,
livres de defeitos que possam afetar a qualidade da solda, a
adequação para a aplicação pretendida ou o ajuste dos
pinos nas proteções especificadas para arcos (virolas) de
cerâmica. Tais defeitos incluem sobreposições, rebarbas,
costuras, trincados, torções, dobras, defeitos de filetes
(rosqueamento), descontinuidades ou materiais estranhos
(ver 7.4.1 e 7.4.2).
7.2.5.2 Pinos com cabeça estão sujeitos a rachaduras ou
fendas na cabeça do pino, que são interrupções abruptas
periféricas causadas pela separação radial do metal que se
estende da cabeça até dentro da haste do pino. Essas
rachaduras ou fendas não devem ser causa para rejeição,
desde que não excedam metade da distância daa cabeça à
haste do pino, conforme determinado por meio de inspeção
visual (ver Figura C-7.1). Os pinos devem ser rejeitados, se
as trincas ou fendas tiverem número ou largura que não
permite que a cabeça se ajuste na bucha de soldagem ou
cause faíscas entre a cabeça do pino e a bucha, afetando a
vida útil desta ou a qualidade da solda.
7.2.6 Material do pino. Os pinos devem ser feitos a partir
de barras trefiladas a frio, em conformidade com os
requisitos de ASTM A 29, Especificação- padrão para
Barras de Aço, Carbono e Liga, Forjadas a Quente,
Requisitos Gerais para os Níveis 1010 por meio de 1020,
inclusive desoxidação de alumínio ou silício
semiacalmados ou acalmados.
7. SOLDAGEM DE PINOS AWS D1.1/D1.1M:2010
283
7.2.7 Espessura do metal base. Ao soldar diretamente no
metal base, este não deve ser inferior a 1/3 do diâmetro do
pino. Ao soldar por meio de ponte, o diâmetro do pino não
deve exceder 2,5 vezes a espessura do material da base. Em
nenhum dos casos, devem ser soldados pinos com mais de
duas camadas de cobertura metálica.
7.3 Requisitos mecânicos
7.3.1 Padrão dos requisitos mecânicos. Por opção do
fabricante, as propriedades mecânicas dos pinos devem ser
determinadas ao testar o aço depois do acabamento a frio
ou o diâmetro total dos pinos acabados. Em ambos os
casos, os pinos devem estar em conformidade com as
propriedades-padrão mostradas na Tabela 7.1.
7.3.2 Testes. As propriedades mecânicas devem ser
determinadas de acordo com as seções aplicáveis da norma
ASTM A 370, Mechanical Testing of Steel Products
(Testes Mecânicos de Produtos de Aço). É usado um
dispositivo de teste típico, semelhante ao mostrado na
Figura 7.2.
7.3.3 Solicitação do Engenheiro. Mediante solicitação do
Engenheiro, o Contratante deverá apresentar:
(1) Certificação do fabricante do pino segundo a qual
os pinos, tal como fornecidos, estão em conformidade com
os requisitos aplicáveis de 7.2 e 7.3.
(2) Cópias certificadas dos relatórios de testes do
fabricante do pino, compreendendo o último conjunto
completo de testes mecânicos de controle de qualidade,
exigidos por 7.3 para cada diâmetro fornecido.
(3) Relatórios certificados de testes de material (CMTR
- Certified Material Test Reports), por parte do fornecedor
do aço, indicando o diâmetro, propriedades químicas e grau
em cada número térmico fornecido.
7.3.4 Falta de testes de controle de qualidade. Quando os
testes de controle de qualidade não estiverem disponíveis, o
Contratante deverá apresentar um relatório de testes
químicos em conformidade com 7.2.6 e um relatório de
testes mecânicos em conformidade com os requisitos de 7.3
para cada número de lote. Pinos não identificados e não
rastreáveis não deverão ser utilizados.
7.3.5 Pinos adicionais. O contratante é responsável pelo
fornecimento de pinos adicionais de todos os tipos e
tamanhos, mediante solicitação do Engenheiro, para
checagem dos requisitos de 7.2 e 7.3. Os testes devem ficar
a cargo do proprietário.
7.4. Mão de obra/ fabricação
7.4.1 Limpeza. No momento da soldagem, os pinos devem
estar livres de ferrugem, crateras de corrosão por ferrugem,
descamação, óleo, umidade ou outras substâncias deletérias
que, adversamente, possam afetar a operação de soldagem.
7.4.2 Restrições de revestimento. A base do pino não deve
ser pintada, galvanizada ou planificada com cádmio antes
da soldagem.
7.4.3 Preparação do metal base. As áreas em que os pinos
devem ser soldados devem estar livres de lascas, ferrugem,
umidade, tinta ou outros materiais prejudiciais à extensão
necessária para obter soldas satisfatórias e evitar fumaças
indesejáveis. Essas áreas podem ser limpas com escova,
escalonamento, punção de marcar ou retificação do fio.
7.4.4 Umidade. As proteções contra arcos ou virolas
devem ser mantidas secas. Qualquer proteção para arco que
apresente sinais de umidade na superfície, provenientes de
orvalho ou chuva, deve ser seca em estufa a 120 º C [250 °
F] por duas horas antes do uso.
7.4.5 Requisitos de espaçamento. Os espaçamentos
longitudinais e laterais de conectores de cisalhamento (tipo
B) do pino podem variar, no máximo, em 1 in [25 mm] a
partir da localização mostrada nos desenhos. A distância
mínima da borda de uma base de pino até a borda de uma
flange deve ser equivalente ao diâmetro do pino mais 1/8 in
[3 mm], mas de preferência não inferior a 1-1/2 in [40
mm].
7.4.6 Remoção da proteção para arcos. Após a soldagem,
as proteções para arcos devem ser tiradas dos pinos a serem
embutidos no concreto e, sempre que possível, de todos os
outros pinos.
7.4.7 Critérios de aceitação. Após a soldagem, os pinos
devem estar livres de quaisquer descontinuidades ou
substâncias que possam interferir com a função pretendida
e apresentar uma aresta total de 360°. No entanto, a não-
fusão nas pernas da aresta e pequenas fissuras reduzidas
devem ser aceitáveis. Os perfis de solda de filete mostrados
na figura 5.4 não se aplicam às arestas de soldas de pino
automaticamente cronometradas.
7.5 Técnica
7.5.1 Soldagem automática mecanizada. Os pinos devem
ser soldados com equipamento de soldagem de pinos,
cronometrado automaticamente, ligado a uma fonte
adequada de energia de corrente contínua de eletrodo
negativo. A voltagem, a corrente, o tempo de soldagem e as
configurações da pistola para elevar e mergulhar devem ser
fixados em configurações ideais, com base em práticas
passadas, recomendações do fabricante do pino e do
equipamento, ou ambos. A AWS C5.4, Recommended
Practices for Stud Welding (“Práticas Recomendadas para
Soldagem de Pinos”), deve ser igualmente utilizada para
orientação técnica.
7.5.2 Pistolas de soldagem múltiplas. Se duas ou mais
pistolas de soldagem de pinos devem ser operadas a partir
de uma mesma fonte de energia, elas devem ser interligadas
de maneira que apenas uma pistola possa operar de cada
vez e para que a fonte de energia esteja completamente
recuperada ao fazer uma solda antes que outra solda seja
iniciada.
7.5.3 Movimento da pistola de soldagem. Durante a
operação, a pistola de soldagem deve ficar parada até que o
metal da solda tenha se solidificado.
7.5.4 Requisitos de temperatura do ambiente e do metal
base. A soldagem não deve ser feita quando a temperatura
do metal base estiver abaixo de –18°C [0 F] ou quando a
superfície estiver úmida ou for exposta às intempéries
(chuva, geada, neve, maresia). Quando a temperatura do
7. SOLDAGEM DE PINOS AWS D1.1/D1.1M:2010
284
metal base estiver abaixo de 0°C [32° F], um pino
adicional, para cada 100 pinos soldados, deve ser testado
pelos métodos descritos em 7.7.1.3 e 7.7.1.4, exceto
quando o ângulo de teste for de, aproximadamente, 15°.
Isso ocorre além dos dois primeiros pinos testados para
cada início de um período de produção ou mudança no
ajuste. Esse ajuste inclui uma pistola de soldagem por
pontos, uma fonte de energia, o diâmetro do pino, elevação
e precipitação da pistola, comprimento total do chumbo
para soldagem e mudanças maiores que ± 5% na corrente
(amperagem) e tempo.
7.5.5 Opção de solda de filete de FCAW, GMAW,
SMAW. Por opção do Contratante, os pinos devem ser
soldados usando processos de FCAW, GMAW ou SMAW,
desde que sejam observados os seguintes requisitos:
7.5.5.1 Superfícies. As superfícies a serem soldadas e
as superfícies adjacentes a uma solda devem estar livres de
escamas soltas ou espessas, escórias, ferrugem, umidade,
graxa e outros materiais estranhos que impeçam a soldagem
adequada ou produzam fumaça desagradável.
7.5.5.2 Extremidade do pino. Para soldas de filete, a
extremidade do pino deve estar igualmente limpa.
7.5.5.3 Ajuste do pino (soldas de filete). Para soldas
de filete, a base do pino deve ser preparada de modo que
ela se ajuste contra o metal base.
7.5.5.4 Tamanho mínimo da solda de filete. Quando
for preciso usar soldas de filete, o tamanho mínimo terá que
ser maior que os exigidos na Tabela 5.8 ou 7.2.
7.5.5.5 Requisitos de pré-aquecimento. O metal de
base no qual são soldados os pinos deve ser pré-aquecido
em conformidade com os requisitos da Tabela 3.2.
7.5.5.6 Eletrodos SMAW. A soldagem SMAW deve
ser realizada utilizando-se eletrodos com baixo nível de
hidrogênio com 5/32 ou 3/16 in [4,0 mm ou 4,8 mm] de
diâmetro, exceto quando um eletrodo de menor diâmetro
puder ser utilizado em pinos com 7/16 in [11,1 mm], ou
menos, de diâmetro, para soldas fora de posição.
7.5.5.7 Inspeção visual. Os pinos soldados de FCAW,
GMAW e SMAW devem ser inspecionados visualmente
em conformidade com 6.9.
7.6 Requisitos de qualificação de
aplicação de pinos
7.6.1 Objetivo. Pinos que são aplicados na oficina ou em
campo, na posição horizontal (mão baixa) em uma
superfície plana e horizontal, devem ser considerados pré-
qualificados em virtude dos testes de qualificação do
fabricante para a base de pino (ver 7.9), e não será
necessária a aplicação de nenhum outro teste. O limite da
posição plana é definido como sendo uma inclinação de 0°
a 15° sobre a superfície na qual o pino é aplicado.
Eis alguns exemplos de aplicações de pinos que necessitam
de testes, desta seção:
(1) Pinos que são aplicados em superficies não planas
ou em superfícies planas na posição vertical ou elevada.
(2) Pinos que são soldados através de coberturas. Os
testes devem ser realizados com o material que representa a
condição a ser utilizada na construção.
(3) Pinos soldados a outros que não sejam os aços do
Grupo I ou II listados na Tabela 3.1.
7.6.2 Responsabilidades pelos testes. O Contratante deve
ser responsável pela realização desses testes. Em geral, os
testes podem ser realizados pelo Contratante, pelo
fabricante do pino ou por outra agência de testes que
satisfaça todas as partes envolvidas.
7.6.3 Preparação de amostras
7.6.3.1 Amostras para teste. Para qualificar aplicações
que envolvam os materiais listados na Tabela 3.1, Grupos I
e II, as amostras podem ser preparadas utilizando-se
materiais de base de aço da classe ASTM A 36 ou os
materiais de base listados na Tabela 3.1, Grupos I e II.
7.6.3.2 Informação registrada. Para qualificar aplicações
que envolvam outros materiais que não os listados na
Tabela 3.1, Grupos I e II, o material de base da amostra
para teste deve apresentar especificações químicas, físicas e
de categoria a serem utilizadas na produção.
7.6.4 Número de amostras. Dez amostras devem ser
soldadas de forma consecutiva, usando procedimentos
recomendados e configurações para cada diâmetro, posição
e geometria da superfície.
7.6.5 Testes exigidos. As dez amostras devem ser testadas
usando-se um ou mais dos seguintes métodos: flexão (ou
dobra), torção (torque) ou tração (ou tensão, ou
tensionamento).
7.6.6 Métodos de teste
7.6.6.1 Teste de flexão. Os pinos devem ser testados
por flexão alternada de 30° em sentidos opostos em uma
instalação de teste típica, como mostrado na figura 7.4, até
que a falha ocorra. Alternativamente, os pinos podem ser
dobrados até 90° a partir de seu eixo original. Os pinos tipo
C, quando dobrados até 90°, devem ser flexionados sobre
um pino com diâmetro quatro vezes maior que o diâmetro
dos primeiros. Em ambos os casos, a aplicação de um pino
deve ser considerada qualificada, se ele for dobrado até 90°
e ocorrer fratura no material da placa ou forma, ou na haste
do pino e não na solda.
7.6.6.2 Teste de torque. O torque dos pinos deve ser
testado usando um método de teste de torque que esteja
essencialmente em conformidade com a Figura 7.3. A
aplicação do pino deve ser considerada qualificada se todas
as amostras forem torqueadas até a destruição sem falhas
na solda.
7.6.6.3 Teste de tração. A tração dos pinos deve ser
testada até a destruição ao se usar qualquer máquina capaz
de fornecer a força necessária. A aplicação do pino deve ser
considerada qualificada quando as amostras não falham na
soldagem.
7.6.7 Dados para aplicação de teste de qualificação.
Aplicação. Os dados para o teste de qualificação devem
incluir o seguinte:
(1) Desenhos que mostram formas e dimensões dos
pinos e proteções para arco.
7. SOLDAGEM DE PINOS AWS D1.1/D1.1M:2010
285
(2) Uma descrição completa do pino e dos materiais de
base, além de uma descrição (número da peça) da proteção
para arco.
(3) Posição de soldagem e ajustes (corrente, tempo).
(4) Um registro que deve ser feito para cada
qualificação e estar disponível para cada contrato. Um
formulário WPS/PQR indicado para aplicação não pré-
qualificada pode ser encontrado no Anexo N, Formulário
N-9.
7.7. Controle da produção
7.7.1. Teste de pré-produção
7.7.1.1. Início de turno. Antes da soldagem do
material em produção, com uma determinada configuração
e com um determinado tamanho e tipo de pino, e no início
de cada produção diária ou do período, os testes devem ser
realizados nos dois primeiros pinos que são soldados. A
técnica do pino pode ser desenvolvida em um pedaço de
material semelhante à peça de produção quanto à espessura
e propriedades. Se a espessura real da produção não estiver
disponível, ela poderá variar em ± 25%. Todos os pinos de
teste deverão ser soldados na mesma posição geral, como
exigido para a peça de produção (plana, vertical ou
elevada).
7.7.1.2 Peça (ou componente) de produção. Opção.
Em vez de serem soldados ao material separado, os pinos
de teste podem ser soldados à peça de produção, exceto
quando chapas separadas forem exigidas de acordo com
7.7.1.5.
7.7.1.3 Requisito de aresta. Os pinos devem
apresentar 360° de aresta, sem sinais de entalhe na base do
pino.
7.7.1.4 Teste de flexão. Além do exame visual, o teste
deve consistir de dobra dos pinos depois que forem
resfriados, a um ângulo de aproximadamente 30°, a partir
de seu eixo original, seja batendo com um martelo na sua
extremidade não soldada, seja colocando um tubo ou outro
dispositivo com abertura adequada, envolvendo o pino e
dobrando-o, manual ou mecanicamente. Em temperaturas
abaixo de 10° C [50° F], a flexão deve ser feita
preferencialmente pela aplicação lenta e contínua de carga.
Para pinos de rosca, o teste de torque da Figura 7.3 deve ser
substituído pelo teste de flexão.
7.7.1.5 Em caso de falha. Se, no exame visual, os
pinos de teste não apresentarem aresta de 360° ou se,
quando testados, a falha ocorrer na zona de solda de cada
pino, o procedimento deve ser corrigido e dois pinos mais
devem ser soldados ao material separado ou na peça de
produção e testados em conformidade com as disposições
de 7.7.1.3 e 7.7.1.4. Se qualquer um dos dois segundos
pinos falhar, a soldagem adicional deve ter continuidade
em chapas separadas até que dois pinos consecutivos sejam
testados e considerados satisfatórios antes que mais pinos
da produção sejam soldados à peça de produção.
7.7.2 Soldagem da produção. Uma vez que a soldagem da
produção tenha começado, todas as mudanças efetuadas
para ajustá-la, conforme determinado em 7.7.1, devem
exigir que os testes em 7.7.1.3 e 7.7.1.4 sejam realizados
antes que a produção seja retomada.
7.7.3 Reparação de pinos. Na produção, os pinos em que
não é obtida uma aresta completa de 360° podem, por
opção do contratante, ser reparados por adição de solda de
filete mínima, como exigido em 7.5.5, no lugar da aresta
que está faltando. A solda de reparação deve ser estendida
até, pelo menos, 3/8 in [10 mm] para além de cada
extremidade da descontinuidade a ser reparada.
7.7.4 Qualificação do operador. O teste de pré-produção
exigido por 7.7.1, se bem sucedido, serve também para
qualificar o operador de soldagem do pino. Antes de
qualquer produção: os pinos são soldados por um operador
não envolvido no ajuste de pré-produção de 7.7.1; os dois
primeiros pinos soldados pelo operador devem ter sido
testados em conformidade com as disposições de 7.7.1.3 e
7.7.1.4. Quando os dois pinos soldados tiverem sido
testados e considerados satisfatórios, o operador poderá
então soldar os pinos da produção.
7.7.5 Reparo da área de remoção. Se um pino
inadmissível tiver sido removido de uma peça sujeita a
tensões de tração, a área da qual o pino foi removido deve
ser deixada lisa e nivelada. Onde, nessas áreas, o metal
base tiver sido retirado, no decorrer da remoção do pino,
em conformidade com as exigências deste código, deve ser
usada uma SMAW com eletrodos com baixo nível de
hidrogênio, para preencher as placas e a superfície de
soldagem deve ser nivelada.
Em áreas de compressão de peças, se as falhas nos pinos se
limitarem a hastes ou zonas de fusão de pinos, um novo
pino pode ser soldado ao lado de cada área não aceitável no
lugar de reparo e substituição na área de solda existente
(ver 7.4.5). Se o metal base for retirado durante a remoção
do pino, as disposições de reparo devem ser as mesmas
para as áreas de tração, exceto que, quando a profundidade
da descontinuidade for menor que 1/8 in [3 mm] ou 7% da
espessura do metal base, essa descontinuidade pode ser
carenada por trituração em vez de ser preenchida com
metal de solda. Onde deverá ser fornecido um pino de
reposição, o reparo do metal base deve ser feito antes da
soldagem daquele pino. Os pinos de reposição (não sendo
do tipo rosca, cujo torque deve ser testado) devem ser
testados ao serem dobrados até um ângulo de
aproximadamente 15° a partir de seus eixos originais. As
áreas de componentes expostos para serem vistos em
estruturas completas devem ser deixadas lisas e niveladas,
no local em que um pino tiver sido removido.
7.8 Requisitos de inspeção de
controle e fabricação
7.8.1 Inspeção visual. Se a inspeção visual revelar
qualquer pino que não apresente uma aresta completa de
360° ou qualquer pino que tenha sido reparado por
soldagem, ele deve ser flexionado a um ângulo de
aproximadamente 15° a partir de seu eixo original. O
torque de pinos com rosca deve ser testado. O método de
flexão deve ser feito em conformidade com 7.7.1.4. A
direção de flexão para pinos com aresta abaixo de 360°
7. SOLDAGEM DE PINOS AWS D1.1/D1.1M:2010
286
deve ser oposta à porção que falta da aresta. O teste de
torque deve estar em conformidade com a Figura 7.3.
7.8.2 Testes adicionais. O Inspector de Controle, se as
condições o permitirem, pode selecionar um número
razoável de pinos adicionais a serem submetidos aos testes
descritos em 7.8.1.
7.8.3 Critérios de aceitação do pino curvado. Os
conectores de cisalhamento do pino dobrado (Tipo B) e
âncoras deformadas (tipo C) e outros pinos a serem
embutidos no concreto (Tipo A), que não apresentam sinais
de falha, devem ser aceitáveis para uso e deixados na
posição dobrada. Quando os documentos contraturais
exigirem que os pinos dobrados sejam endireitados, a
operação de endireitamento deve ser feita sem aquecimento
e antes que a operação de soldagem do pino da produção
seja concluída.
7.8.4 Critérios de aceitação do teste de torque. O uso
dos pinos de rosca (Tipo A), cujo nível de torque foi
testado na prova de carga da Figura 7.3 e que não
apresentam sinais de falha, deve ser aceitável.
7.8.5 Ação corretiva. Pinos soldados que não respeitem os
requisitos do código devem ser reparados ou substituídos
pelo Contratante, que deverá rever o procedimento de
soldagem, conforme necessário, para garantir que a
soldagem de pinos subsequentes atenda aos requisitos do
código.
7.8.6 Opção do proprietário. Por opção e a expensas do
proprietário, o contratante pode ser obrigado, a qualquer
momento, a apresentar pinos dos tipos usados, nos termos
do contrato, para uma verificação de qualificação em
conformidade com os procedimentos de 7.9.
7.9 Requisitos do fabricante quanto à
qualificação da base do pino
7.9.1 Objetivo. O objetivo desses requisitos é prescrever
testes para certificação de fabricantes sobre a soldabilidade
da base de pinos.
7.9.2 Responsabilidade pelos testes. O fabricante do pino
será responsável pela realização do teste de qualificação.
Esses testes podem ser realizados por uma agência de testes
que seja satisfatória para o Engenheiro. A agência a realizar
os testes deve submeter um relatório de certificação ao
fabricante dos pinos, fornecendo os procedimentos e
resultados em todos os testes, incluindo a informação
descrita em 7.9.10.
7.9.3 Extensão da qualificação. A qualificação de uma
base de pino deve consistir de uma qualificação de bases de
pino com a mesma geometria, fluxo e proteção de arco,
com o mesmo diâmetro e diâmetros que são menores, cerca
de menos de 1/8 in [3 mm]. Uma base de pino classificada
com um grau de aprovação do aço da classe ASTM A29 e
que satisfaça os padrões de propriedades mecânicas (ver
7.3.1) deve consituir qualificação em todos os outros graus
aprovados do aço da classe ASTM A29 (ver 7.2.6), desde
que essa conformidade com todas as outras disposições
aqui descritas seja alcançada.
7.9.4 Duração da qualificação. Um tamanho de proteção
para arco de base de pino, uma vez qualificado, deverá ser
considerado como tal até que o fabricante do pino faça
qualquer alteração na geometria, no material, no fluxo ou
na proteção para arco da base do pino que afete as
características de soldagem.
7.9.5 Preparação de amostras
7.9.5.1 As amostras para teste devem ser preparadas
por meio da soldagem de pinos representativos a chapas de
amostra adequadas de aço da classe ASTM A36 ou
quaisquer outros materiais listados na Tabela 3.1 ou 4.9. Os
pinos a serem soldados através de coberturas metálicas
devem ter os testes de qualificação de base da solda
realizados por soldagem através de cobertura metálica
representativa daquela usada em construção, galvanizada
pela designação de revestimento G90, para uma espessura
de ponte, ou G60, para uma ponte com duas camadas, da
classe ASTM A653. Quando os pinos forem soldados
através de cobertura, o teste de qualificação do pino de base
deve incluir cobertura representativa daquela usada em
construção. A soldagem deve ser feita na posição
horizontal (superfície horizontal da chapa). Os testes para
pinos de rosca devem estar em branco (pinos sem rosca).
7.9.5.2 Os pinos devem ser soldados com fonte de
energia, pistola de soldagem e equipamento controlado
automaticamente pelo fabricante do pino. A voltagem, a
corrente e o tempo de soldagem (ver 7.9.6) devem ser
medidos e registrados para cada amostra. A elevação e a
precipitação devem estar em configuração ideal, como
recomendado pelo fabricante.
7.9.6 Número de amostras para testes
7.9.6.1 Para pinos com 7/8 in [22 mm] de diâmetro ou
menos, 30 amostras de testes devem ser soldadas
consecutivamente com tempo ideal constante, mas com
corrente 10% acima do ideal. Para pinos com mais de 7/8 in
[22 mm] de diâmetro, 10 amostras de teste devem ser
soldadas consecutivamente com tempo ideal constante. A
corrente e o tempo ideais devem ser o ponto médio da faixa
normalmente recomendada pelo fabricante para a soldagem
de produção.
7.9.6.2 Para pinos com 7/8 in [22 mm] de diâmetro ou
menos, 30 amostras devem ser soldadas consecutivamente
com tempo ideal constante, mas com corrente 10% abaixo
do ideal. Para pinos com mais de 7/8 in [22 mm] de
diâmetro, 10 amostras devem ser soldadas
consecutivamente com tempo ideal constante, mas com
corrente 5% abaixo do ideal.
7.9.6.3 Para pinos a serem soldados através de
cobertura metálica, a faixa dos diâmetros da base de solda
deve ser qualificada pela soldagem de 10 pinos, na corrente
e no tempo ideais, como recomendado pelo fabricante em
conformidade com o seguinte:
(1) Diâmetros máximo e mínimo soldados através de
uma espessura de ponte com calibre 16, designação de
revestimento G90.
(2) Diâmetros máximo e mínimo soldados através de
duas camadas de ponte com calibre 16, designação de
revestimento G60.
(3) Diâmetros máximo e mínimo soldados através de
uma espessura de ponte G60 com calibre 18 acima de uma
espessura de ponte G60 com calibre 16.
7. SOLDAGEM DE PINOS AWS D1.1/D1.1M:2010
287
(4) Diâmetros máximo e mínimo soldados através de
duas camadas de ponte com calibre 18, ambas com
designação de revestimento G60.
A faixa de diâmetros de mínimo a máximo, soldada através
de duas camadas de cobertura metálica de calibre 18 com
galvanização G60, deve ser qualificada para soldagem
através de uma ou duas camadas de cobertura metálica com
espessura calibre 18 ou menos.
7.9.7 Testes
7.9.7.1 Testes de tração. Dez das amostras soldadas
em conformidade com 7.9.6.1 e dez em conformidade com
7.9.6.2 devem ser submetidas a um teste de tração em um
dispositivo semelhante ao mostrado na Figura 7.2, exceto
que pinos sem cabeça podem ser segurados na extremidade
não soldada nas mandíbulas da máquina de teste de tração.
A base do pino deve ser considerada qualificada, se todas
as amostras de teste tiverem uma resistência à tração igual
ou superior ao mínimo descrito em 7.3.1.
7.9.7.2 Testes de flexão (pinos com 7/8 in [22 mm] de
diâmetro ou menos). Vinte das amostras soldadas em
conformidade com 7.9.6.1 e vinte em conformidade com
7.9.6.2 devem ter sua flexão testada ao serem flexionadas,
alternadamente, em 30° a partir de seu eixo original, em
direções opostas até ocorrer a falha. Os pinos devem ser
dobrados em um dispositivo de teste de flexão, como
mostrado na Figura 7.4, exceto que pinos com menos de
1/2 in [12 mm] de diâmetro podem ser flexionados usando
um dispositivo, como mostrado na Figura 7.5. A base de
pino deve ser considerada qualificada se, em todas as
amostras para teste, a fratura ocorrer no material da chapa
ou na haste do pino e não na solda ou HAZ. Todas as
amostras de teste para pinos com mais de 7/8 in [22 mm] só
devem ser submetidas a testes de tração.
7.9.7.3 Solda por meio de testes de cobertura. Todas
as 10 soldagens através das amostras de pino da cobertura
devem ser testadas ao serem flexionadas em 30° em
direções opostas, em um dispositivo de teste de flexão,
como mostrado na Figura 7.4 ou por teste de flexão de 90°
a partir de seu eixo original ou teste de tração, até a
destruição na máquina capaz de fornecer a força necessária.
Com qualquer método de teste utilizado, a faixa de
diâmetros do pino do mínimo ao máximo deve ser
considerada como bases de soda qualificadas para
soldagem através da cobertura se, em todas as amostras de
teste, ocorrer fratura no material da chapa ou na haste do
pino e não na solda ou HAZ.
7.9.8 Novos testes. Se ocorrer falha em alguma solda ou
HAZ, em qualquer um dos grupos de teste de flexão de
7.9.7.2, ou em menos do que a resistência à tração mínima
especificada do pino em qualquer dos grupos de tensão em
7.9.7.1, um novo grupo de testes (descrito em 7.9.6.1 ou
7.9.6.2, conforme o caso) deve ser preparado e testado. Se
essas falhas se repetirem, a base do pino deve falhar na
qualificação.
7.9.9 Aceitação. Para a combinação de proteção para arco e
a base do pino do fabricante ser qualificada, cada pino de
cada grupo de 30 pinos deve, por meio de teste ou novo
teste, satisfazer os requisitos descritos em 7.9.7. A
qualificação de um determinado diâmetro da base do pino
deve ser considerada uma qualificação para bases de pino
com o mesmo diâmetro nominal (ver 7.9.3, geometria,
material, fluxo e proteção para arco da base do pino).
7.9.10 Dados do teste de qualificação do fabricante. Os
dados do teste devem incluir o seguinte:
(1) Desenhos mostrando formas e dimensões com
tolerâncias de pino, proteções contra arcos e fluxo;
(2) Uma descrição completa dos materiais utilizados
nos pinos, inclusive a quantidade e o tipo de fluxo e uma
descrição das proteções contra arcos.
(3) Resultados certificados de testes.
7. SOLDAGEM DE PINOS AWS D1.1/D1.1M:2010
288
Tabela 7.1
Requisitos de Propriedades
Mecânicas para Pinos
(ver 7.3.1)
Tipo Aa
Tipo Bb
Tipo Cc
Resistência à
Tração
psi min.
MPa min.
61 000
420
65 000
450
80 000
552
Limite de
Elasticidade
(0.2%
deslocamento)
psi min.
MPa min.
49 000
340
51 000
350
—
(0.5%
deslocamento)
psi min.
MPa min.
— — 70 000
485
Alongamento % in 2 in min.
% in 5x dia. min.
17%
14%
20%
15%
—
Redução
da área
% min. 50% 50% —
a
Pinos Tipo A devem ser propósito geral de qualquer tipo e
tamanho usado para outros propósitos que não transferência de
cisalhamento em projeto e construção de feixe compósito.
b
Pinos Tipo B devem ser pinos com cabeça, flexionados ou de
outra configuração em diâmetro de 3/8 in [10 mm], 1/2 in [12
mm], 5/8 in [16 mm], 3/4 in [20 mm], 7/8 in [22 mm], e 1 in [25
mm] que são usados como componentes essenciais em projeto
de feixe compósito e projeto de ancoragem de concreto.
c
Pinos Tipo C devem ser barras de aço deformadas por trabalho a
frio fabricadas em conformidade com a especificação ASTM A
496 tendo um diâmetro nominal equivalente ao diâmetro de um
arame simples tendo o mesmo peso por pé que o arame
deformado. ASTM A 496 especifica um diâmetro máximo de
0,628 in [16 mm]. Qualquer barra fornecida acima desse
diâmetro deve ter as mesmas características físicas com respeito
a deformações como requerido por ASTM A 496.
Tabela 7.2
Tamanho Mínimo de Solda de Filete
Para Pinos de Pequeno Diâmetro (ver
7.5.5.4)
Diâmetro do Pino
Tamanho Min. de
Filete
in mm in mm
1/4 até 7/16 6 até 11 3/16 5
1/2 12 1/4 6
5/8, 3/4, 7/8 16, 20, 22 5/16 8
1 25 3/8 10
7. SOLDAGEM DE PINOS AWS D1.1/D1.1M:2010
289
a
Comprimento manufaturado antes da soldagem.
Dimensões Padrão, in
Diâmetro da
Haste
(C)
Tolerâncias
de
Comprimento
(L)
Diâmetro
da Cabeça
(H)
Altura
Mínima da
Cabeça
(T)
3/8
+0.010
–0.010
±1/16 3/4 ± 1/64 9/32
1/2
+0.010
–0.010
± 1/16 1 ± 1/64 9/32
5/8
+0.010
–0.010
± 1/16
1-1/4 ±
1/64
9/32
3/4
+0.015
–0.015
± 1/16
1-1/4 ±
1/64
3/8
7/8
+0.015
–0.015
± 1/16
1-3/8 ±
1/64
3/8
1
+0.020
–0.020
± 1/16
1-5/8 ±
1/64
1/2
Dimensões Padrão, mm
10
+0.25
–0.25
± 1.6 19 ± 0.40 7.1
13
+0.25
–0.25
± 1.6 25 ± 0.40 7.1
16
+0.25
–0.25
± 1.6 32 ± 0.40 7.1
19
+0.40
–0.40
± 1.6 32 ± 0.40
22
+0.40
–0.40
± 1.6 35 ± 0.40
25
+0.40
–0.40
± 1.6
41 ± 0.40
12.7
Figura 7.1 - Dimensões e Tolerâncias
de Pinos com Cabeça do Tipo-Padrão
(ver 7.2.1)
Figura 7.2 – Suporte de Tese de
Tensão Típico (ver 7.3.2)
7. SOLDAGEM DE PINOS AWS D1.1/D1.1M:2010
290
Nota: Dimensões de detalhes de suporte de teste deveriam ser apropriados para o tamanho do pino. As roscas do pino devem
estar limpas e livres de outros lubrificantes que não o resíduo de corte/lubrificantes formadores de frio na condição “como recebido”
do fabricante.
Torque de Prova Requerido para Testar Pinos Rosqueadosa
Diâmetro Nominal
M.E.T.A.b
Rosca Torque de Teste de Provac
in mm in2
mm2
no./in pitch-mm Series b-ft Joule
0,236 M6 0,031 20,1 1,0 ISO-724 5,4 7,4
1/4 6,4 0,036 23,2 28 UNF 6,6 9,0
0,032 20,6 20 UNC 5,9 7,8
5/16 7,9 0,058 37,4 24 UNF 13,3 18,1
0,052 33,5 18 UNC 11,9 16,1
0,315 M8 0,057 36,6 1,25 ISO-724 13,2 17,9
3/8 9,5 0,088 56,8 24 UNF 24,3 32,9
0,078 50,3 16 UNC 21,5 29,2
0,394 M10 0,090 58,0 1,5 ISO-724 26,2 35,5
7/16 11,1 0,118 76,1 20 UNF 37,9 51,4
0,106 68,4 14 UNC 34,8 47,2
0,472 M12 0,131 84,3 1,75 ISO-724 45,7 61,9
1/2 12,7 0,160 103,2 20 UNF 58,8 79,7
0,142 91,6 13 UNC 52,2 70,8
0,551 M14 0,178 115,0 2,0 ISO-724 72,7 98,5
9/16 14,3 0,203 131,0 18 UNF 83,9 113,8
0,182 117,4 12 UNC 75,2 102,0
5/8 15,9 0,255 164,5 18 UNF 117,1 158,8
0,226 145,8 11 UNC 103,8 140,8
0,630 M16 0,243 157,0 2,0 ISO-724 113,4 153,7
3/4 19,1 0,372 240,0 16 UNF 205,0 278,0
0,334 215,5 10 UNC 184,1 249,7
0,787 M20 0,380 245,0 2,5 ISO-724 221,2 299,9
0,866 M22 0,470 303,0 2,5 ISO-724 300,9 408,0
7/8 22,2 0,509 328,4 14 UNF 327,3 443,9
0,462 298,1 9 UNC 297,1 402,9
0,945 M24 0,547 353,0 3,0 ISO-724 382,4 518,5
1 25,4 0,678 437,4 12 UNF 498,3 675,7
0,606 391,0 8 UNC 445,4 604,0
a
Figuras de torque aão baseadas em pinos rosqueados do Tipo A com limite de escoamento mínimo de 49 000 psi [340 MPa].
b
Área de Rosca Efetiva Média (M.E.T.A) deve ser definida como a area de tensão efetiva baseada em um diâmetro médio tomado
aproximadamente a os diâmetros menor e de passo.
c
Valores são calculados em torque de teste de prova de 0,9 vezes o Diâmetro Nominal do Pino vezes 0,2 Fator de Coeficiente de
Fricção vezes Área de Rosca Efetiva Média vezes Limite de escoamento Mínimo para pinos não banhados na condição como
recebido. Banhos, revestimentos ou depósitos de oleo/graxa alterarão o Fator de Coeficiente de Fricção.
Figura 7.3 – Arranjo de Teste de Torque e Tabela de Torques de Teste (ver 7.6.6.2)
7. SOLDAGEM DE PINOS AWS D1.1/D1.1M:2010
291
Figura 7.4 – Dispositivo de Teste de
Flexão (ver 7.9.7.2)
Figura 7.5 – Tipo de Dispositivo
Sugerido para Teste de Qualificação
de Pinos Pequenos (ver 7.9.7.2
AWS D1.1/D1.1M:2010
292
8. Fortalecendo e Reparando Estruturas Existentes
8.1 Geral
Fortalecer ou reparar uma estrutura existente deve
consistir de modificações para atender aos requisitos
de projeto especificados pelo Engenheiro. O
Engenheiro deve preparar um plano abrangente para
o trabalho. Tais planos devem incluir, entre outros,
projeto, mão-de-obra, inspeção e documentação.
Exceto como modificado nessa seção, todas as
provisões desse código devem aplicar-se igualmente
a reforço e reparo de estruturas existentes, incluindo
endireitamento por aquecimento de membros
distorcidos.
8.2 Metal Base
8.2.1 Investigação. Antes de preparar desenhos e
especificações para reforço ou reparo de estruturas
existents, os tipos de metal base usados na estrutura
original devem ser determinados por desenhos e
espicificações existentes, ou a partir de testes de
metal base representativos.
8.2.2 Adequação para Soldagem. Deve ser
estabelecida a adequação do metal de base para
soldagem (ver Tabela C-8.1 para orientação).
8.2.3 Outros Metais Base. Quando metais base que
não os listados na Tabela 3.1 devem ser juntados, o
Engenheiro deve dar consideração especial à seleção
de metal de adição e WPSs.
8.3 Projeto para Fortalecimento e
Reparação
8.3.1 Processo de Projeto. O processo de projeto
deve considerar as provisões do código governante e
outras partes de especificações gerais. O Engenheiro
deve especificar o tipo e extensão de pesquisa
necessário para identificar condições existentes que
requerem reforço ou reparo para satisfazer os
critérios aplicáveis.
8.3.2 Análise de Tensão. Uma análise de tensões na
área afetada pelo reforço ou reparo deve ser feita.
Níveis de tensão devem ser estabelecidos para todos
os casos de carga viva e morta no local. Deve ser
feita consideração sobre o dano acumulado que
membros podem ter sustentado em serviços
passados.
8.3.3 Histórico de Fadiga. Membros sujeitos a
carga cíclica devem ser projetados de acordo com os
requisitos de tensão de fadiga. O histórico de carga
prévia deve ser considerado no projeto. Quando o
histórico de carga não está disponível, ele deve ser
estimado.
8.3.4 Restauração ou Reposição. Deve ser feita
uma determinação sobre se os reparos deveriam
consistir de restaurar partes corroídas ou de outra
forma danificadas ou da substituição de membros
inteiros.
8.3.5 Carregamento Durante as Operações. O
Engenheiro deve determinar a extensão na qual será
permitido que um membro carregue cargas enquanto
aquecimento, soldagem ou corte térmico é realizado.
Quando necessário, as cargas devem ser reduzidas. A
estabilidade local e geral do membro deve ser
investigada, considerando o efeito de temperaturas
elevadas estenderem-se sobre parte da área de seção
transversal.
8.3.6 Conexões Existentes. Conexões existents em
estruturas requerendo reforço ou reparo devem ser
valiadas para adequação de projeto e reforçadas se
necessário.
8.3.7 Uso de Fixadores Existentes. Quando calculus
de projeto mostram que rebites ou parafusos sofrerão
tensão excessiva pela nova carga total, apenas carga
morta existente deve ser designada para eles. Se
rebites ou parafusos sofrem tensão excessive apenas
pela carga morta ou estão sujeitos a carga cíclica,
então metal base e soldagem suficientes devem ser
acrescentadas para suportar a carga total.
7. SOLDAGEM DE PINOS AWS
D1.1/D1.1M:2010
293
8.4 Aprimoramento do Tempo de
Fadiga
8.4.1 Métodos. Os seguintes métodos de
recondicionamento de detalhes de soldas críticas
podem ser usados quando procedimentos por escrito
foram aprovados pelo Engenheiro:
(1) Melhoria de Perfil. Refazer a forma da face
de solda ao retificar com uma broca de carboneto
para obter um perfil côncavo com uma transição
suave de material base a solda.
(2) Retificação de Extremidade. Refazer a forma
somente das extremidades de solda ao retificar com
uma broca ou torno de mão.
(3) Martelamento. Rebitagem de superfície de
solda, ou martelamento de extremidades de solda.
(4) Preparação TIG. Refazer a forma da solda ao
derreter novamente o metal de solda existente com
calor de arco GTAW (nenhum metal de adição
usado).
(5) Retificação de Extremidade mais
Martelamento. Quando usados juntos, os benefícios
são cumulativos.
8.4.2 Aumento da Faixa de Tensão. O Engenheiro
deve estabelecer o aumento adequado O Engenheiro
deve estabelecer o aumento apropriado na faixa de
tensão permissível.
8.5 Mão-de-Obra e Técnica
8.5.1 Condição de Metal Base. Metal base metal a
ser reparado e superficies de metal base existente em
contato com novo metal base devem ser limpas de
poeira, ferrugem e material estranaha, exceto filme
de tinta aderente como em SPC SP2 (Surface
Preparation Specification #2 - Hand Tool Cleaning).
As partes de tais superficies que serão soldadas
devem ser totalmente limpas de toda matéria
estranha, inclusive tinta, por pelo menos 2 in [50
mm] a partir da raiz da solda.
8.5.2 Descontinuidades de Membro. Quando
requerido pelo Engenheiro, descontinuidades
inaceitáveis no membro sendo reparado ou reforçado
devem ser corrigidas antes de endireitamento por
aquecimento, curvamento por aquecimento ou
soldagem.
8.5.3 Reparos de Solda. Se reparos de solda são
necessários, eles devem ser feitos em conformidade
com 5.26, conforme aplicável.
8.5.4 Metal Base de Espessura Insuficiente. O
metal base que não tem espessura suficiente para
desenvolver o tamanho necessário ou a capacidade
necessária de solda deve ser, como determinado pelo
Engenheiro: (1) construído com metal de solda até a
espessura requerida, (2) cortado até que a espessura
adequada esteja disponível, (3) reforçado com metal
base adicional ou (4) removido e recolocado com
metal base de espessura e força adequadas.
8.5.5 Endireitamento por Aquecimento. Quando
métodos de endireitamento por aquecimento ou
curvamento por aquecimento são usados, a
temperatura máxima das áreas aquecidas como
medida pelo uso de crayons sensíveis à temperatura
ou outros meios positivos não deve exceder 1100°F
[600°C] para aço resfriado e temperado, nem 1200°F
[650°C] para outros aços. O resfriamento acelerado
de aço acima de 600°F [315°C] deve ser proibido.
8.5.6 Sequência de Soldagem. Ao reforçar ou
reparar membros pela adição de metal base ou metal
de solda, ou ambos, a soldagem e sequência de solda
deve, tanto quanto possível, resultar em uma entrada
de calor equilibrada ao redor do eixo neutro para
minimizar distorção e tensões residuais.
8.6 Qualidade
8.6.1 Inspeção Visual. Todos os membros e soldas
afetados pelo trabalho devem ser inspecionados
visualmente em conformidade com o plano de
abarangência do Engenheiro.
8.6.2 NDT. O método, extensão e critérios de
aceitação de NDT devem ser especificados nos
documentos de contrato.
AWS D1.1/D1.1M:2010
294
Anexos
Informações Normativas
Esses anexos contêm informações e requisitos que são considerados parte de um padrão.
Anexo A Garganta Efetiva
Anexo B Gargantas Efetivas de Soldas de Filete em Juntas Oblíquas em T
Anexo D Aplainamento de Braçadeiras de Trave—Estruturas Estaticamente Carregadas
Anexo E Aplainamento de Braçadeiras de Trave—Estruturas Ciclicamente Carregadas
Anexo F Gráficos de Conteúdo de Temperatura-Umidade
Anexo G Requisitos de Qualificação de Fabricantes de Base de Pinos
Anexo H Qualificação e Calibragem de Unidades UT com Outros Blocos de Referência Aprovados
Anexo I Diretriz sobre Métodos Alternativos para Determinar Pré-Aquecimento
Anexo J Símbolos para Projeto de Solda de Conexão Tubular
Informações Instrutivas
Esses anexos não são considerados uma parte do padrão e são fornecidos apenas para propósitos informativos.
Anexo K Termos e Definições
Anexo L Guia para Especificação de Ativadores
Anexo M Qualificação de Equipamento e Formulários de Inspeção UT
Anexo N Formulários de Amostra de Soldagem
Anexo O Diretrizes para Preparação de Investigações Técnicas para o Comitê de Soldagem Estrutural
(Structural Welding Committee)
Anexo P Ângulo Diedro Local
Anexo Q Conteúdos de WPS Pré-qualificada
Anexo R Práticas de Segurança
Anexo S Exame UT de Soldas por Técnicas Alternativas
Anexo T Parâmetro Alfa Oval
Anexo U Lista de Documentos de Referência
Anexo V Propriedades de Resistência de Metal de Adição
AWS D1.1/D1.1M:2010
295
Esta página está intencionalmente em branco
AWS D1.1/D1.1M:2010
296
Anexo A (Normativo)
Garganta Efetiva
Esse anexo é parte de D1.1/D1.1M:2010, Código de Soldagem Estrutural - Aço, da AWS, e inclui elementos
obrigatórios para uso com esse padrão.
Observação: A garganta efetiva de solda deve ser definida como a distância mínima da raiz de junta a sua face, com ou
sem dedução de 1/8 in [3 mm], menos qualquer convexidade.
AWS D1.1/D1.1M:2010
297
Esta página está intencionalmente em branco.
AWS D1.1/D1.1M:2010
298
Anexo B (Normativo)
Gargantas Efetivas de Soldas de Filete em Juntas
Oblíquas em T
Esse anexo é parte de D1.1/D1.1M:2010, Código de Soldagem Estrutural - Aço, da AWS, e inclui elementos
obrigatórios para uso com esse padrão.
A Tabela B.1 é uma tabulação mostrando fatores
equivalentes de tamanho de perna para a faixa de
ângulos diedros entre 60° e 135°, presumindo que não
haja abertura de raiz. Abertura(s) de raiz de 1/16 in [2
mm] ou maior, mas sem exceder 3/16 in [5 mm], deve
ser acrescentada diretamente ao tamanho de perna. O
tamanho de perna requerido para soldas de filete em
juntas oblíquas deve ser calculado usando o fator
equivalente de tamanho de perna para ângulo diedro
correto, como mostrado no exemplo.
EXEMPLO
(Unidades Convencionais dos EUA)
Dado: Junta oblíqua em T-, ângulo: 75°; abertura de raiz: 1/16
(0,063) in
Requerido: Resistência equivalente a 90° de solda de filete de
tamanho: 5/16 (0,313) in
Procedimento: (1) Fator para 75° da Tabela B 1: 0,86
(2) Tamanho de perna equivalente, w, de junta oblíqua,
sem abertura de raiz:
w = 0,86 x 0,313 = 0,269 in
(3) Com abertura de raiz de: 0,063 in
(4) Tamanho de perna requerido, w=0,332 in
de solda de filete oblíqua: [(2) + (3)]
(5) Arrendondando para uma dimensão prática: w = 3/8
in
EXEMPLO
(Unidades SI)
Dado: Junta oblíqua em T-, ângulo: 75°; abertura de raiz: 2
mm
Requerido: Resistência equivalente a 90° de solda de filete de
tamanho: 8 mm
Procedimento: (1) Fator para 75° da Tabela B 1: 0,86
(2) Tamanho de perna equivalente, w, de junta
oblíqua, sem abertura de raiz:
w = 0,86 x 8 = 6,9 mm
(3) Com abertura de raiz de: 2 mm
(4) Tamanho de perna requerido, w, de 8,9 mm
solda de filete oblíqua: [(2) + (3)]
(5) Arrendondando para uma dimensão prática: w =
9,0 mm
Para soldas de filete tendo pernas de medida igual (wn),
a distância da raiz da junta para a face da solda
diagramática (tn) pode ser calculada como segue:
Para aberturas de raiz > 1/16 in 2 mm e ≤ 3/ 6 in
[5 mm], use
Para aberturas de raiz < 1/16 in [2 mm], use
Rn e t’n = tn
quando a perna medida de tal solda de filete (wn) é a
distância perpendicular da superfície da junta à
extremidade oposta, e (R) é a abertura de raiz, se
houver, entre as partes (ver Figura 3.11). Aberturas de
raiz aceitáveis são definidas em 5.22.1.
AWS D1.1/D1.1M:2010 ANEXO D
299
Tabela B.1
Fatores Equivalentes de Tamanho de Perna de Solda de Filete para Juntas
Oblíquas em T-
Ângulo diedro. ψ 60 65 70 75 80 85 90 95
Tamanho de solda de filete
comparável
para mesma resistência
0,71 0,76 0,81 0,86 0,91 0,96 1,00 1,03
Ângulo diedro. ψ 100 105 110 115 120 125 130 135
Tamanho de solda de filete
comparável
para mesma resistência
1,08 1,12 1,16 1,19 1,23 1,25 1,28 1,31
AWS D1.1/D1.1M:2010
300
Anexo C
Não há Anexo C. O Anexo C foi omitido para evitar possível confusão com referências às cláusulas do Comentário.
AWS D1.1/D1.1M:2010
301
Esta página está intencionalmente em branco
AWS D1.1/D1.1M:2010
302
Anexo D (Normativo)
Aplainamento de Braçadeiras de Trave—Estruturas
Estaticamente Carregadas
Esse anexo é parte de D1.1/D1.1M:2010, Código de Soldagem Estrutural - Aço, da AWS, e inclui elementos
obrigatórios para uso com esse padrão.
Observações:
1. D = Profundidade de braçadeira.
2. d = Menor dimensão do painel.
AWS D1.1/D1.1M:2010 ANEXO D
303
Tabela D.1
Reforços Intermediários em Ambos os Lados de Braçadeira
Espessura
de Braçadeira in
Profundidade de
Braçadeira in
Menor Dimensão do Painel in
5/16 Menor que 47 25 31 38 44 50
47 e acima 20 25 30 35 40 45 50 55 60 6 70 75 80 85
3/8 Menor que 56 25 31 38 44 50 56 63
56 e acima 20 25 30 35 40 45 50 55 60 6 70 75 80 85
7/16 Menor que 66 25 31 38 44 50 56 63 69
66 e acima 20 25 30 35 40 45 50 55 60 6 70 75 80 85
1/2 Menor que 75 25 31 38 44 50 56 63 69 75 8
75 e acima 20 25 30 35 40 45 50 55 60 6 70 75 80 85
9/16 Menor que 84 25 31 38 44 50 56 63 69 75 8 88
84 e acima 20 25 30 35 40 45 50 55 60 6 70 75 80 85
5/8 Menor que 94 25 31 38 44 50 56 63 69 75 8 88 94
94 e acima 20 25 30 35 40 45 50 55 60 6 70 75 80 85
Variação Máxima Permissível in
1/4 5/16 3/8 7/16 1/2 9/16 5/8 11/16 3/4 13/16 7/8 15/16 1 1-1/16
Espessura
de Braçadeira mm
Profundidade
de
Braçadeira m
Menor Dimensão do Painel metros
8,0 Menor que
1,19
0,63 0,79 0,97 1,12 1,27
1,19 e acima 0,51 0,63 0,76 0,89 1,02 1,14 1,27 1,40 1,52 1,65 1,78 1,90 2,03 2,16
9,5 Menor que
1,42
0,63 0,79 0,97 1,12 1,27 1,42 1,60
1,42 e acima 0,51 0,63 0,76 0,89 1,02 1,14 1,27 1,40 1,52 1,65 1,78 1,90 2,03 2,16
11,1 Menor que
1,68
0,63 0,79 0,97 1,12 1,27 1,42 1,60 1,75
1,68 e acima 0,51 0,63 0,76 0,89 1,02 1,14 1,27 1,40 1,52 1,65 1,78 1,90 2,03 2,16
12,7 Menor que
1,90
0,63 0,79 0,97 1,12 1,27 1,42 1,60 1,75 1,90 2,06
1,90 e acima 0,51 0,63 0,76 0,89 1,02 1,14 1,27 1,40 1,52 1,65 1,78 1,90 2,03 2,16
14,3 Menor que
2,13
0,63 0,79 0,97 1,12 1,27 1,42 1,60 1,75 1,90 2,06 2,24
2,13 e acima 0,51 0,63 0,76 0,89 1,02 1,14 1,27 1,40 1,52 1,65 1,78 1,90 2,03 2,16
15,9 Menor que
2,39
0,63 0,79 0,97 1,12 1,27 1,42 1,60 1,75 1,90 2,06 2,24 2,39
2,39 e acima 0,51 0,63 0,76 0,89 1,02 1,14 1,27 1,40 1,52 1,65 1,78 1,90 2,03 2,16
Variação Máxima Permissível milímetros
6 8 10 11 12 16 14 16 18 20 21 24 25 27
Observação: Para dimensões reais não exibidas, use a figura mais alta a seguir
Tabela D.2
Sem Reforços Intermediários
Espessura de
Braçadeira, in
Profundidade de Braçadeira, in
Qualquer 38 47 56 66 75 84 94 103 113 122 131 141 150 159 169 178 188
Variação Máxima Permissível, in
1/4 5/16 3/8 7/16 1/2 9/16 5/8 11/16 3/4 13/16 7/8 15/16 1 1-1/16 1-1/8 1-3/16 1-1/4
Espessura de
Braçadeira, mm
Profundidade de Braçadeira, metros
Qualquer 0,97 1,19 1,42 1,68 1,90 2,13 2,39 2,62 2,87 3,10 3,33 3,58 3,81 4,04 4,29 4,52 4,77
Variação Máxima Permissível, milímetros
6 8 10 11 12 14 16 18 20 21 22 24 25 27 29 30 32
Observação: Para dimensões reais não exibidas, use a figura mais alta a seguir
AWS D1.1/D1.1M:2010 ANEXO D
304
Tabela D.3
Reforços Intermediários em Apenas Um Lado de Braçadeira
Espessura
de Braçadeira in
Profundidade
de
Braçadeira in
Menor Dimensão do Painel in
5/16
Menor que 31 25 31
31 e acima 17 21 25 29 34 38 42 46 50 54 59 63 67 71
3/8
Menor que 38 25 31 38
38 e acima 17 21 25 29 34 38 42 46 50 54 59 63 67 71
7/16
Menor que 44 25 31 38 44
44 e acima 17 21 25 29 34 38 42 46 50 54 59 63 67 71
1/2
Menor que 50 25 31 38 44 50
50 e acima 17 21 25 29 34 38 42 46 50 54 59 63 67 71
9/16
Menor que 56 25 31 38 44 50 56
56 e acima 17 21 25 29 34 38 42 46 50 54 59 63 67 71
5/8
Menor que 63
63 e acima
25 31 38 44 50 56 63
17 21 25 29 34 38 42 46 50 54 59 63 67 71
Variação Máxima Permissível in
1/4 5/16 3/8 7/16 1/2 9/16 5/8 11/16 3/4 13/16 7/8 15/16 1 1-1/16
Espessura
de Braçadeira
mm
Profundidade
de
Braçadeira m
Menor Dimensão do Painel metros
8,0
Menor que
0,78
0,63 0,79
0,78 e acima 0,43 0,53 0,63 0,74 0,86 0,97 1,07 1,17 1,27 1,37 1,50 1,60 1,70 1,80
9,5
Menor que
0,97
0,63 0,79 0,97
0,97 e acima 0,43 0,53 0,63 0,74 0,86 0,97 1,07 1,17 1,27 1,37 1,50 1,60 1,70 1,80
11,1
Menor que
1,12
0,63 0,79 0,97 1,12
1,12 e acima 0,43 0,53 0,63 0,74 0,86 0,97 1,07 1,17 1,27 1,37 1,50 1,60 1,70 1,80
12,7
Menor que
1,27
0,63 0,79 0,97 1,12 1,27
1,27 e acima 0,43 0,53 0,63 0,74 0,86 0,97 1,07 1,17 1,27 1,37 1,50 1,60 1,70 1,80
14,3
Menor que
1,42
0,63 0,79 0,97 1,12 1,27 1,42
1,42 e acima 0,43 0,53 0,63 0,74 0,86 0,97 1,07 1,17 1,27 1,37 1,50 1,60 1,70 1,80
15,9
Menor que
1,60
0,63 0,79 0,97 1,12 1,27 1,42 1,60
1,60 e acima 0,43 0,53 0,63 0,74 0,86 0,97 1,07 1,17 1,27 1,37 1,50 1,60 1,70 1,80
Variação Máxima Permissível milímetros
6 8 10 11 12 16 14 16 18 20 21 24 25 27
Observação: Para dimensões reais não exibidas, use a figura mais alta a seguir.
AWS D1.1/D1.1M:2010 ANEXO E
305
Esta página está intencionalmente em branco
AWS D1.1/D1.1M:2010
306
Anexo E (Normativo)
Aplainamento de Braçadeiras de Trave—Estruturas
Ciclicamente Carregadas
Esse anexo é parte de D1.1/D1.1M:2010, Código de Soldagem Estrutural - Aço, da AWS, e inclui elementos
obrigatórios para uso com esse padrão.
Observações:
1. D = Profundidade de braçadeira.
2. d = Menor dimensão do painel.
AWS D1.1/D1.1M:2010 ANEXO E
307
Tabela E.1
Reforços Intermediários em Ambos os Lados de Braçadeira. Traves
Interiores
Espessura
de Braçadeira in
Profundidade de
Braçadeira in
Menor Dimensão do Painel in
5/16
Menor que 47 29 36 43 50
47 e acima 23 29 35 40 46 52 58 63 69 75 81 86 92 98
3/8
Menor que 56 29 36 43 50 58
56 e acima 23 29 35 40 46 52 58 63 69 75 81 86 92 98
7/16
Menor que 66 29 36 43 50 58 65
66 e acima 23 29 35 40 46 52 58 63 69 75 81 86 92 98
1/2
Menor que 75 29 36 43 50 58 65 72 79
75 e acima 23 29 35 40 46 52 58 63 69 75 81 86 92 98
9/16
Menor que 84 29 36 43 50 58 65 72 79 86
84 e acima 23 29 35 40 46 52 58 63 69 75 81 86 92 98
5/8
Menor que 94
94 e acima
29 36 43 50 58 65 72 86 93
23 29 35 40 46 52 58 63 69 75 81 86 92 98
Variação Máxima Permissível In
1/4 5/16 3/8 7/16 1/2 9/16 5/8 11/16 3/4 13/16 7/8 15/16 1 1-1/16
Espessura
de Braçadeira mm
Profundidade de
Braçadeira m
Menor Dimensão do Painel metros
8,0
Menor que 1,19 0,74 0,91 1,09 1,27
1,19 e acima 0,58 0,74 0,89 1,02 1,17 1,32 1,47 1,60 1,75 1,90 2,06 2,18 2,34 2,49
9,5
Menor que 1,42 0,74 0,91 1,09 1,27 1,47
1,42 e acima 0,58 0,74 0,89 1,02 1,17 1,32 1,47 1,60 1,75 1,90 2,06 2,18 2,34 2,49
11,1
Menor que 1,68 0,74 0,91 1,09 1,27 1,47 1,65
1,68 e acima 0,58 0,74 0,89 1,02 1,17 1,32 1,47 1,60 1,75 1,90 2,06 2,18 2,34 2,49
12,7
Menor que 1,90 0,74 0,91 1,09 1,27 1,47 1,65 1,83 2,00
1,90 e acima 0,58 0,74 0,89 1,02 1,17 1,32 1,47 1,60 1,75 1,90 2,06 2,18 2,34 2,49
14,3
Menor que 2,13 0,74 0,91 1,09 1,27 1,47 1,65 1,83 2,00 2,18
2,13 e acima 0,58 0,74 0,89 1,02 1,17 1,32 1,47 1,60 1,75 1,90 2,06 2,18 2,34 2,49
15,9
Menor que 2,39 0,74 0,91 1,09 1,27 1,47 1,65 1,83 2,00 2,18 2,36
2,39 e acima 0,58 0,74 0,89 1,02 1,17 1,32 1,47 1,60 1,75 1,90 2,06 2,18 2,34 2,49
Variação Máxima Permissível Milímetros
6 8 10 11 12 16 14 16 18 20 21 24 25 27
Observação: Para dimensões reais não exibidas, use a figura mais alta a seguir.
AWS D1.1/D1.1M:2010 ANEXO E
308
Tabela E.2
Reforços Intermediários em Apenas Um Lado de Braçadeira. Traves Frontais
Espessura
de Braçadeira
in
Profundidade
de
Braçadeira in
Menor Dimensão do Painel in
5/16
Menor que 31 30 38
31 e acima 20 25 30 35 40 45 50 55 60 65 70 75 80 85
3/8
Menor que 38 30 38
38 e acima 20 25 30 35 40 45 50 55 60 65 70 75 80 85
7/16
Menor que 44 30 38 45
44 e acima 20 25 30 35 40 45 50 55 60 65 70 75 80 85
1/2
Menor que 50 30 38 45 53
50 e acima 20 25 30 35 40 45 50 55 60 65 70 75 80 85
9/16
Menor que 56 30 38 45 53 60
56 e acima 20 25 30 35 40 45 50 55 60 65 70 75 80 85
5/8
Menor que 63
63 e acima
30 38 45 53 60 68
20 25 30 35 40 45 50 55 60 65 70 75 80 85
Variação Máxima Permissível in
1/4 5/16 3/8 7/16 1/2 9/16 5/8 11/16 3/4 13/16 7/8 15/16 1 1-1/16
Espessura
de Braçadeira
mm
Profundidade
de
Braçadeira m
Menor Dimensão do Painel metros
8,0
Menor que
1,19
0,76 0,97
1,19 e acima 0,51 0,63 0,76 0,89 1,02 1,14 1,27 1,40 1,52 1,65 1,78 1,90 2,03 2,16
9,5
Menor que
1,42
0,76 0,97
1,42 e acima 0,51 0,63 0,76 0,89 1,02 1,14 1,27 1,40 1,52 1,65 1,78 1,90 2,03 2,16
11,1
Menor que
1,68
0,76 0,97 1,14
1,68 e acima 0,51 0,63 0,76 0,89 1,02 1,14 1,27 1,40 1,52 1,65 1,78 1,90 2,03 2,16
12,7
Menor que
1,90
0,76 0,97 1,14 1,35
1,90 e acima 0,51 0,63 0,76 0,89 1,02 1,14 1,27 1,40 1,52 1,65 1,78 1,90 2,03 2,16
14,3
Menor que
2,13
0,76 0,97 1,14 1,35 1,52
2,13 e acima 0,51 0,63 0,76 0,89 1,02 1,14 1,27 1,40 1,52 1,65 1,78 1,90 2,03 2,16
15,9
Menor que
2,39
0,76 0,97 1,14 1,35 1,52 1,73
2,39 e acima 0,51 0,63 0,76 0,89 1,02 1,14 1,27 1,40 1,52 1,65 1,78 1,90 2,03 2,16
Variação Máxima Permissível milímetros
6 8 10 11 12 16 14 16 18 20 21 24 25 27
Observação: Para dimensões reais não exibidas, use a figura mais alta a seguir.
AWS D1.1/D1.1M:2010 ANEXO E
309
Tabela E.3
Reforços Intermediários em Apenas Um Lado de Braçadeira. Traves
Interiores
Espessura
de Braçadeira
in
Profundidade
de
Braçadeira in
Menor Dimensão do Painel in
5/16
Menor que 31 25 31
31 e acima 17 21 25 29 34 38 42 46 50 54 59 63 67 71
3/8
Menor que 38 25 31 38
38 e acima 17 21 25 29 34 38 42 46 50 54 59 63 67 71
7/16
Menor que 44 25 31 38 44
44 e acima 17 21 25 29 34 38 42 46 50 54 59 63 67 71
1/2
Menor que 50 25 31 38 44 50
50 e acima 17 21 25 29 34 38 42 46 50 54 59 63 67 71
9/16
Menor que 56 25 31 38 44 50 56
56 e acima 17 21 25 29 34 38 42 46 50 54 59 63 67 71
5/8
Menor que 63
63 e acima
25 31 38 44 50 56 63
17 21 25 29 34 38 42 46 50 54 59 63 67 71
Variação Máxima Permissível in
1/4 5/16 3/8 7/16 1/2 9/16 5/8 11/16 3/4 13/16 7/8 15/16 1 1-1/16
Espessura
de Braçadeira
mm
Profundidade
de
Braçadeira m
Menor Dimensão do Painel metros
8,0
Menor que
0,78
0,63 0,79
0,78 e acima 0,43 0,53 0,63 0,74 0,86 0,97 1,07 1,17 1,27 1,37 1,50 1,60 1,70 1,80
9,5
Menor que
0,97
0,63 0,79 0,97
0,97 e acima 0,43 0,53 0,63 0,74 0,86 0,97 1,07 1,17 1,27 1,37 1,50 1,60 1,70 1,80
11,1
Menor que
1,12
0,63 0,79 0,97 1,12
1,12 e acima 0,43 0,53 0,63 0,74 0,86 0,97 1,07 1,17 1,27 1,37 1,50 1,60 1,70 1,80
12,7
Menor que
1,27
0,63 0,79 0,97 1,12 1,27
1,27 e acima 0,43 0,53 0,63 0,74 0,86 0,97 1,07 1,17 1,27 1,37 1,50 1,60 1,70 1,80
14,3
Menor que
1,42
0,63 0,79 0,97 1,12 1,27 1,42
1,42 e acima 0,43 0,53 0,63 0,74 0,86 0,97 1,07 1,17 1,27 1,37 1,50 1,60 1,70 1,80
15,9
Menor que
1,60
0,63 0,79 0,97 1,12 1,27 1,42 1,60
1,60 e acima 0,43 0,53 0,63 0,74 0,86 0,97 1,07 1,17 1,27 1,37 1,50 1,60 1,70 1,80
Variação Máxima Permissível milímetros
6 8 10 11 12 16 14 16 18 20 21 24 25 27
Observação: Para dimensões reais não exibidas, use a figura mais alta a seguir.
AWS D1.1/D1.1M:2010 ANEXO E
310
Tabela E.4
Reforços Intermediários em Ambos os Lados de Braçadeira. Traves Frontais
Espessura
de Braçadeira
in
Profundidade
de
Braçadeira in
Menor Dimensão do Painel in
5/16
Menor que 47 33 41 49
47 e acima 26 33 39 47 53 59 66 71 79 85 92 98 105 112
3/8
Menor que 56 33 41 49 57
56 e acima 26 33 39 47 53 59 66 71 79 85 92 98 105 112
7/16
Menor que 66 33 41 49 57 65 73
66 e acima 26 33 39 47 53 59 66 71 79 85 92 98 105 112
1/2
Menor que 75 33 41 49 57 65 73 81
75 e acima 26 33 39 47 53 59 66 71 79 85 92 98 105 112
9/16
Menor que 84 33 41 49 57 65 73 81 89
84 e acima 26 33 39 47 53 59 66 71 79 85 92 98 105 112
5/8
Menor que 94
94 e acima
33 41 49 57 65 73 81 89 98
26 33 39 47 53 59 66 71 79 85 92 98 105 112
Variação Máxima Permissível in
1/4 5/16 3/8 7/16 1/2 9/16 5/8 11/16 3/4 13/16 7/8 15/16 1 1-1/16
Espessura
de Braçadeira
mm
Profundidade
de
Braçadeira m
Menor Dimensão do Painel metros
8,0
Menor que
1,19
0,84 1,04 1,24
1,19 e acima 0,66 0,84 0,99 1,19 1,35 1,50 1,68 1,83 2,01 2,16 2,34 2,49 2,67 2,84
9,5
Menor que
1,42
0,84 1,04 1,24 1,45
1,42 e acima 0,66 0,84 0,99 1,19 1,35 1,50 1,68 1,83 2,01 2,16 2,34 2,49 2,67 2,84
11,1
Menor que
1,68
0,84 1,04 1,24 1,45 1,65 1,85
1,68 e acima 0,66 0,84 0,99 1,19 1,35 1,50 1,68 1,83 2,01 2,16 2,34 2,49 2,67 2,84
12,7
Menor que
1,90
0,84 1,04 1,24 1,45 1,65 1,85 2,06
1,90 e acima 0,66 0,84 0,99 1,19 1,35 1,50 1,68 1,83 2,01 2,16 2,34 2,49 2,67 2,84
14,3
Menor que
2,13
0,84 1,04 1,24 1,45 1,65 1,85 2,06 2,26
2,13 e acima 0,66 0,84 0,99 1,19 1,35 1,50 1,68 1,83 2,01 2,16 2,34 2,49 2,67 2,84
15,9
Menor que
2,39
0,84 1,04 1,24 1,45 1,65 1,85 2,06 2,26 2,49
2,39 e acima 0,66 0,84 0,99 1,19 1,35 1,50 1,68 1,83 2,01 2,16 2,34 2,49 2,67 2,84
Variação Máxima Permissível milímetros
6 8 10 11 12 16 14 16 18 20 21 24 25 27
Observação: Para dimensões reais não exibidas, use a figura mais alta a seguir.
Tabela E.5
Sem Reforços Intermediários. Traves Frontais ou Interiores
Espessura
de Braçadeira
in
Profundidade de Braçadeira in
Qualquer 38 47 56 66 75 84 94 103 113 122 131 141 150 159 169 178 188
Variação Máxima Permissível in
1/4 5/16 3/8 7/16 1/2 9/16 5/8 11/16 3/4 13/16 7/8 15/16 1 1-1/16 1-1/8 1-3/16 1-1/4
Espessura
de Braçadeira
mm
Profundidade de Braçadeira metros
Qualquer 0,97 1,19 1,42 1,68 1,90 2,13 2,39 2,62 2,87 3,10 3,33 3,58 3,81 4,04 4,29 4,52 4,77
Variação Máxima Permissível milímetros
6 8 10 11 12 14 16 18 20 21 22 24 25 27 29 30 32
Observação: Para dimensões reais não exibidas, use a figura mais alta a seguir
AWS D1.1/D1.1M:2010
311
Esta página está intencionalmente em branco
AWS D1.1/D1.1M:2010
312
Anexo F (Normativo)
Gráficos de Conteúdo de Temperatura-Umidade
Esse anexo é parte de D1.1/D1.1M:2010, Código de Soldagem Estrutural - Aço, da AWS, e inclui elementos
obrigatórios para uso com esse padrão.
ANEXO F AWS D1.1/D1.1M:2010
313
Observações:
1. Qualquer gráfico psicrométrico pode ser usado em lugar deste gráfico.
2. Ver Figura F.2 para um exemplo da aplicação desse gráfico no estabelecimento de condições de exposição de eletrodo
Figura F.1 - Gráfico de Conteúdo de Temperatura-Umidade a ser Usado em
Conjunção com Programa de Teste para Determinar Tempo Estendido de
Exposição Atmosférica de Eletrodos SMAW de Baixo Hidrogênio (ver 5.3.2.3)
ANEXO F AWS D1.1/D1.1M:2010
314
Figura F.2 - Aplicação de Gráfico de Conteúdo de Temperatura-Umidade na
Determinação de Tempo de Exposição Atmosférica de Eletrodos SMAW de
Baixo Hidrogênio (ver 5.3.2.3)
AWS D1.1/D1.1M:2010
315
Esta página está intencionalmente em branco
AWS D1.1/D1.1M:2010
316
Anexo G (Normativo)
Requisitos de Qualificação de Fabricante de Base de
Pinos
AS PROVISÕES DESSE ANEXO COMO MOSTRADAS EM EDIÇÕES ANTERIORES DE D1.1/D1.1M DA
AWS FORAM MOVIDAS PARA A CLÁUSULA 7.9.
AWS D1.1/D1.1M:2010
317
Esta página está intencionalmente em branco
AWS D1.1/D1.1M:2010
318
Anexo H (Normativo)
Qualificação e Calibragem de Unidades UT com Outros
Blocos de Referência Aprovados
(ver Figura H.1)
Esse anexo é parte de D1.1/D1.1M:2010, Código de Soldagem Estrutural - Aço, da AWS, e inclui elementos
obrigatórios para uso com esse padrão.
H1. Modo Longitudinal
H1.1 Calibragem de Distância.
H1.1.1 O transdutor deve ser colocado na
posição H no bloco DC, ou M no bloco DSC.
H1.1.2 O instrumento deve ser ajustado para
produzir indicações em 1 in [25 mm], 2 in [50 mm],
3 in [75 mm], 4 in [100 mm], etc., no visor.
OBSERVAÇÃO: Esse procedimento estabelece uma
calibragem de tela de 10 in [250 mm] e pode ser
modificado para estabelecer outras distâncias como
permitido por 6.25.4.1.
H1.2 Amplitude. Com o transdutor na posição
descrita em H1.1, o ganho deve ser ajustado até que
a indicação maximizada do primeiro reflexo de
retorno alcance 50% a 75% da altura de tela.
H2. Modo de Onda de
Cisalhamento (Transversal)
H2.1 Verificação de Ponto de Entrada de Som
(Índice)
H2.1.1 A unidade de busca deve ser colocada na
posição J ou L no bloco DSC, ou I no bloco DC.
H2.1.2 S unidade de busca deve ser movida até
que o sinal do raio esteja maximizado.
H2.1.3 O ponto na Unidade de Busca que está
alinhado com a linha no bloco de calibragem é
indicativo do ponto de entrada de som.
OBSERVAÇÃO: Esse ponto de entrada de som deve
ser usado para todas as demais verificações de
distância e ângulo.
H2.2 Verificação de Ângulo de Caminho de Som
H2.2.1 O transdutor deve ser colocado em
posição:
K no bloco DSC para 45° a 70°
N no bloco SC para 70°
O no bloco SC para 45°
P no bloco SC para 60°
H2.2.2 O transdutor deve ser movido para a
frente e para trás sobre a linha indicativa do ângulo
transdutor até que o sinal do raio seja maximizado.
AWS D1.1/D1.1M:2010
ANEXO H
319
H2.2.3 O ponto de entrada de som no transdutor
deve ser comparado com a marca de ângulo no bloco
de calibragem (tolerância de 2º).
H2.3 Calibragem de Distância.
H2.3.1 O transdutor deve estar na posição L
(Figura H.1) no bloco DSC. O instrumento deve ser
ajustado para produzir indicações em 3 in [75 mm] e
7 in [180 mm] no visor.
O transdutor deve ser colocado na posição J no bloco
DSC (qualquer ângulo). O instrumento deve ser
ajustado para produzir indicações em 1 in [25 mm],
5 in [125 mm], 9 in [230 mm] no visor
H2.3.3 O transdutor deve ser colocado na
posição I no bloco DC (qualquer ângulo). O
instrumento deve ser ajustado para alcançar
indicação em 1 in [25 mm], 2 in [50 mm], 3 in [75
mm], 4 in [100 mm], etc., no visor.
OBSERVAÇÃO: Esse procedimento estabelece uma
calibragem de tela de 10 in [250 mm] e pode ser
modificado para estabelecer outras distâncias como
permitido por 6.25.5.1.
H2.4 Calibragem de Sensibilidade ou Amplitude.
H2.4.1 O transdutor deve ser colocado na
posição L no bloco DSC (qualquer ângulo). O sinal
maximizado deve ser ajustado a a partir do tampão
1/32 in [0,8 mm] para alcançar uma indicação de
altura de linha de referência horizontal.
H2.4.2 O transdutor deve ser colocado no bloco
SC na posição:
N para ângulo de 70°
O para ângulo de 45°
P para ângulo de 60°
O sinal maximizado do orifício de 1/16 in [1,6 mm]
deve ser ajustado para alcançar uma indicação de
altura de linha de referência horizontal.
H2.4.3 A leitura decibel obtida em H2.4.1 ou
H2.4.2 deve ser usada como "nível de referência" "b"
na planilha de Relatório de Teste (Anexo M,
Formulário M-11) em conformidade com 6.23.1.
H3. Procedimento de Linearidade
Horizontal
OBSERVAÇÃO: Como esse procedimento de
qualificação é realizado com uma unidade de busca
de feixe direto que produz ondas longitudinais com
uma velocidade de som que é quase o dobro de
ondas de cisalhamento, é necessário dobrar as
faixas de distância de onda de cisalhamento a serem
usadas ao aplicar esse procedimento.
H3.1 Uma unidade de busca de feixe direto
atendendo os requisitos de 6.22.6 deve ser acoplada
na posição:
G no tipo de bloco IIW (Figura 6.23)
H no bloco DC (Figura H.1)
M no bloco DC (Figura H.1)
T ou U no bloco DS (Figura 6.23)
H3.2 Um mínimo de cinco reflexos de retorno na
faixa de qualificação sendo certificada deve ser
alcançado.
H3.3 O primeiro e o quinto reflexos de retorno
devem ser ajustados a seus próprios locais com uso
da calibragem de distância e zero ajustes de atraso.
H3.4 Cada indicação deve ser ajustada ao nível de
referência com o controle de ganho ou atenuação
para exame local horizontal.
H3.5 Cada local de deflexão de traço intermediário
deve ser corrigida no âmbito de mais ou menos ± 2%
da largura da tela.
AWS D1.1/D1.1M:2010 ANEXO H
320
Observações:
1. A tolerância dimensional entre todas as superfícies envolvidas em referência ou calibragem deve ser dentro de ±0,005 in de
dimensão detalhada.
2. O acabamento de superfície de todas as superfícies nas quais som é aplicado ou a partir da qual é refletido deve ter um máximo de
125 μin r.m.s.
3. Todo material deve ser A 36 da ASTM ou acusticamente equivalente.
4. Todos os orifícios devem ter um acabamento interno liso e devem ser perfurados a 90 da superfície do material.
5. Linhas de grau e marcas de identificação devem ser entalhadas na superfície do material de forma que orientação permanente possa
ser mantida.
Figura H.1 - Outros Blocos Aprovados e Posição de Transdutor Típica (ver
H2.3.1)
AWS D1.1/D1.1M:2010 ANEXO H
321
Observações:
1. A tolerância dimensional entre todas as superfícies envolvidas em referência ou calibragem deve ser dentro de ±0,13 mm de
dimensão detalhada.
2. O acabamento de superfície de todas as superfícies nas quais som é aplicado ou a partir da qual é refletido deve ter um máximo de
3,17 μn r.m.s.
3. Todo material deve ser A 36 da ASTM ou acusticamente equivalente.
4. Todos os orifícios devem ter um acabamento interno liso e devem ser perfurados a 90 da superfície do material.
5. Linhas de grau e marcas de identificação devem ser entalhadas na superfície do material de forma que orientação permanente possa
ser mantida.
Figura H.1 (Continuação) - Outros Blocos Aprovados e Posição de
Transdutor Típica (ver H2.3.1) (Métrico)
AWS D1.1/D1.1M:2010
322
Anexo I (Normativo)
Orientação sobre Métodos Alternativos de Determinar
Pré-Aquecimento
Esse anexo é parte de Dl.1/D1.1M:2010, Código de Soldagem Estrutural - Aço, da AWS e inclui elementos
obrigatórios para uso com esse padrão.
I1. Introdução
O propósito desse guia é fornecer alguns métodos
alternativos opcionais para determinar condições de
soldagem (principalmente pré-aquecimento) para evitar
trinca de resfriamento. Os métodos são baseados
primariamente em pesquisa em teste de pequena escala
conduzidos por muitos anos em vários laboratórios ao
redor do mundo. Nenhum método está disponível para
prever condições ideais em todos os casos, mas o guia
considera vários fatores importantes tais como nível de
hidrogênio e composição de aço não inclusos
implicitamente nos requisitos da Tabela 3.2. O guia
pode portanto ser de valor para indicar se os requisitos
da Tabela 3.2 são excessivamente conservadores ou em
alguns casos não suficientemente exigentes.
O usuário é direcionado ao Comentário para uma
apresentação mais detalhada do histórico científico e
informações de pesquisa que conduzem aos dois
métodos propostos.
Ao usar esse guia como uma alternativa à Tabela 3.2, as
suposições feitas, os valores selecionados e a
experiência passada devem ser cuidadosamente
considerados.
I2. Métodos
Dois métodos são usados como base para estimar
condições de soldagem para evitar trincas de
resfriamento:
(1) controle de dureza HAZ
(2) Controle de hidrogênio
I3. Controle de Rigidez HAZ
I3.1 As provisões incluídas nesse guia para uso desse
método são restritas a soldas de filete.
I3.2 Esse método é baseado na suposição de que
trincas não ocorrerão se a rigidez do HAZ for mantida
abaixo de algum valor crítico. Isso é alcançado pelo
controle da taxa de resfriamento abaixo de um valor
crítico dependendo da temperabilidade do aço. A
temperabilidade do aço na soldagem relaciona-se a sua
propensão em direção à formação de um HAZ rígido e
pode ser caracterizado pela taxa de resfriamento
necessária para produzir um dado nível de rigidez.
Aços com alta temperabilidade podem, portanto,
produzir HAZ rígido a taxas mais lentas de resfriamento
que um aço com temperabilidade mais baixa.
Equações e gráficos estão disponíveis na literatura
técnica que relaciona a taxa de resfriamento da solda à
espessura dos membros de aço, tipo de junta, condições
e variáveis de soldagem.
I3.3 A seleção de rigidez crítica dependerá de um
número de fatores tais como tipo de aço, nível de
hidrogênio, restrição e condições de serviço. Testes de
laboratório com soldas de filete mostram que trinca
HAZ não ocorre se o Número de Dureza de Vickers
(HV) do HAZ é menor que 350 HV, mesmo com
eletrodos de alto hidrogênio. Com eletrodos de baixo
hidrogênio, rigidez de 400 HV poderia ser tolerado sem
AWS D1.1/D1.1M:2010 ANEXO H
323
trincas. Tal rigidez, no entanto, pode não ser tolerável
em serviço em que haja risco de trinca de corrosão por
tensão, iniciação de fratura quebradiça ou outros riscos
para a segurança ou habilidade de Serviço da estrutura.
AWS D1.1/D1.1M:2010 ANEXO I
324
A taxa de resfriamento crítica para uma dada rigidez
pode ser aproximadamente relacionada ao carbono
equivalente (CE) do aço (ver Figura 1.2). Como a
relação é apenas aproximada, a curva mostrada na
Figura I.2 pode ser conservadora para aços de carbono
simples e de carbono simples-manganésio e assim
´permitir o uso da curva de rigidez alta com menos
risco.
Alguns aços de baixa liga, particularmente aqueles
contendo columbium (nióbio) podem ser mais
temperáveis que a Figura 1.2 indica, e o uso da curva de
rigidez mais baixa é recomendada.
I3.4 Embora o método possa ser usado para determinar
um nível de pré-aquecimento, seu principal valor está
em determinar a entrada mínima de calor (e
consequentemente o tamanho mínimo de solda) que
evita enrijecimento excessivo. É particularmente útil
para determinar o tamanho mínimo de soldas de filete
em passe único que pode ser depositado sem pré-
aquecimento.
I3.5 A abordagem de rigidez não considera a
possibilidade de trinca de metal de solda. No entanto,
por experiência é descoberto que a entrada de calor
determinada por esse método é normalmente adequada
para prevenir trinca de metal de solda, na maioria dos
casos, em soldas de filete se o eletrodo não é um metal
de adição de alta resistência e é geralmente de um tipo
de baixo hidrogênio [por exemplo, eletrodo de baixo
hidrogênio (SMAW), GMAW, FCAW, SAW].
I3.6 Porque o método depende exclusivamente de
controlar a rigidez HAZ, o nível e restrição de
hidrogênio não são explicitamente considerados.
I3.7 Esse método não é aplicável a aços resfriados e
temperados [ver 15.2(3) para limitações].
I4. Controle de Hidrogênio
I4.1 O método de controle de hidrogênio é baseado na
suposição de que trincas não ocorrerão se a quantidade
média de hidrogênio permanecendo na junta depois que
esta resfriou a cerca de 120ºF [50ºC] não exceder um
valor crítico dependente da composição do aço e das
restrições. O pré-aquecimento necessário para permitir
hidrogênio suficiente para dissipar-se da junta pode ser
estimado usando esse método.
I4.2 Esse método é baseado principalmente em
resultados de testes em soldas de chanfro PJP restritos;
o metal de solda usado nos testes deve corresponder ao
metal matriz. Não houve testes extensivos desse
método em soldas de filete; no entanto, ao permitir
restrições, o método tem sido adequadamente adaptado
para essas soldas.
I4.3 Uma determinação do nível de restrição e do nível
de hidrogênio original na poça de fusão é requerida
para o método de hidrogênio.
Nesse guia, restrição é classificada como alta, média e
baixa, e a categoria precisa ser estabelecida por
experiência.
I4.4 O método de controle de hidrogênio é baseado em
um único cordão de solda de baixa entrada de calor
representando um passe de raiz e assume que o HAZ
enrijece. O método é, portanto, particularmente útil para
resistência alta, aços de baixa liga tendo
temperabilidade alta, quando o controle de rigidez não é
sempre praticável. Consequentemente, porque assume
que o HAZ enrijece completamente, o pré-aquecimento
previsto pode ser muito conservador para aços carbono.
I5. Seleção de Método
I5.1 O seguinte procedimento é recomendado como um
guia para seleção de método de controle de rigidez ou
de controle de hidrogênio.
Determinar carbono e carbono equivalente:
( ) ( ) ( )
para localizar a posição de zona do aço na Figura 1.1
(ver 16.1.1 para as diferentes formas de obter análise
química).
I5.2 As características de desempenho de cada zona e a
ação recomendada são como segue:
(1) Zona I. Trincas são improváveis, mas podem
ocorrer com alto hidrogênio ou alta restrição. Use
método de controle de hidrogênio para determinar pré-
aquecimento para aços nessa zona.
(2) Zona II. O método de controle de rigidez e
rigidez selecionada devem ser usados para determinar
entrada mínima de energia para soldas de filete em
passe único sem pré-aquecimento.
Se a entrada de energia não é prática, use o método de
hidrogênio para determinar pré-aquecimento.
Para soldas em chanfro, o método de controle de
hidrogênio deve ser usado para determinar pré-
aquecimento.
Para aços com carbono alto, uma energia mínima para
controlar rigidez e pré-aquecimento para controlar
hidrogênio pode ser requerida para ambos os tipos de
solda, isto é, soldas em chanfro e de filete.
(3) Zona III. O método de controle de hidrogênio
deve ser usado. Quando a entrada de calor é restrita
para preservar as propriedades HAZ (por exemplo,
alguns aços resfriados e temperados), o método de
controle de hidrogênio deveria ser usado para
determinar pré-aquecimento.
ANEXO I AWS D1.1/D1.1M:2010
325
I6. Guia Detalhado
I6.1 Método de Rigidez
I6.1.1 O equivalente de carbono deve ser calculado
como segue:
( ) ( ) ( )
A análise química deve ser obtida de:
(1) Certificados de teste da fábrica
(2) Química de produção típica (da fábrica)
(3) Química de especificação (usando valores
máximos)
(4) Testes de usuário (análise química)
I6.1.2 A taxa de resfriamento crítica deve ser
determinada por uma rigidez máxima selecionada de
HAZ de 400 HV ou 350 HV da Figura L2.
I6.1.3 Usando Espessuras aplicáveis para placas de
"flange" e "braçadeira", o diagrama apropriado deve ser
selecionado da Figura I.3 e a entrada mínima de energia
para soldas de filete de passe único deve ser
determinada. Essa entrada de energia aplica-se a
soldas SAW.
I6.1.4 Para outros processos, a entrada mínima de
energia para soldas de filete de passe único pode ser
estimada ao aplicar os seguintes fatores de
multiplicação à energia estimada para o processo SAW
em I6.1.3.
Processo de Soldagem Fator de Multiplicação
SAW 1
SMAW 1,50
GMAW, FCAW 1,25
I6.1.5 A Figura I.4 pode ser usada para determinar
tamanhos de filete como uma função de entrada de
energia.
I6.2 Método de Controle do Hidrogênio
I6.2.1 O valor do parâmetro de composição, Pcm,
deve ser calculado como segue:
Pcm =
A análise química deve ser determinada e deve ser
definida como segue:
I6.2.2 O nível de hidrogênio deve ser determinado e
deve ser definido como segue:
(1) Hidrogênio Extra Baixo. Esses consumíveis
dão um conteúdo difusível de hidrogênio de menos que
5ml/100g de metal depositado quando medidos usando
ISO 3690-1976, ou um conteúdo de umidade de
cobertura de eletrodo de 0,2% no máximo, em
conformidade com A5.1 ou A5.5 da AWS. Isso pode
ser estabelecido ao testar cada tipo, marca ou
combinação arame/fluxo usados após a remoção do
pacote ou contêiner e exposição pela duração
pretendida, com a devida consideração por condições de
armazenamento reais antes do uso imediato. O seguinte
pode ser admitido para atender esse requisito:
(a) Eletrodos de baixo hidrogênio tirados de
contêineres hermeticamente vedados, secos a 700ºF-
800ºF [370º-430º] por uma hora e usados dentro de
duas horas após a remoção.
(b) GMAW com arames limpos e sólidos.
(2) H2 Baixo Hidrogênio. Esses consumíveis dão
um conteúdo difusível de hidrogênio de menos que 10
ml/100g de metal depositado quando medidos usando
ISO 3690-1976, ou um conteúdo de umidade de
cobertura de eletrodo de 0,4% no máximo, em
conformidade com A5.1 da AWS. Isso pode ser
estabelecido por um teste de cada tipo, marca de
consumível ou combinação arame/fluxo usado. O
seguinte pode ser admitido para atender esse requisito:
(a) Eletrodos de baixo hidrogênio tirados de
contêineres hermeticamente vedados acondicionados
em conformidade com 5.3.2.1 do código e usados
dentro de quatro horas após a remoção.
(b) SAW com fluxo seco.
(3) H3 Hidrogênio Não Controlado. Todos os
outros consumíveis não atendendo os requisitos de H1
ou H2.
I6.2.3 O agrupamento de índice de sensibilidade
da Tabela I.1 deve ser determinado.
I6.2.4 Níveis Mínimos de Pré-aquecimento e
Interpasse.
A Tabela I.2 dá o pré-aquecimento mínimo e
temperatura de interpasse que devem ser usados. A
Tabela I.2 dá três níveis de restrição. O nível de
restrição a ser usado deve ser determinado em
conformidade com I6.2.5.
I6.2.5 Restrição. A classificação de tipos de soldas
em vários níveis de restrição deveria ser determinada
com base na experiência, julgamento de engenharia,
pesquisa ou cálculo.
Três níveis de restrição foram fornecidos:
(1) Restrição Baixa. Esse nível descreve juntas
soldadas em chanfro ou de filete comuns nas quais uma
liberdade razoável de movimento de membros existe.
(2) Restrição Média. Esse nível descreve juntas
soldadas de filete e em chanfro nas quais, por causa dos
membros já serem soldados ao trabalho estrutural, uma
liberdade reduzida de movimentos existe.
(3) Restrição Alta. Esse nível descreve soldas nas
quais quase não há liberdade de movimento para
membros juntados (como soldas de reparo,
especialmente em material espesso).
AWS D1.1/D1.1M:2010 ANEXO I
326
Tabela I.1
Grupamento de Índice de Suscetibilidade como Função de Nível de
Hidrogênio “H” e Parâmetro de Composição Pcm (ver I6.2.3)
Grupamento de Índiceb
de Suscetibilidadec
Carbono Equivalente =
Nível de
Hidrogênio, H
< 0,18 < 0,23 < 0,28 < 0,33 < 0,38
H1 A B C D E
H2 B C D E F
H3 C D E F G
a
Pcm
b
Índice de suscetibilidade—12 Pcm + log10 H.
c
Agrupamentos de Índice de Suscetibilidade, de A a G, abrangem o efeito combinado do parâmetro de composição, Pcm, e nível de
hidrogênio, H, em conformidade com a fórmula mostrada na Nota b.
As quantidades numéricas exatas são obtidas da fórmula da Nota b usando os valores estabelecidos de Pcm e os seguintes valores de H,
dados em ml/100g de metal de solda [ver I6.2.2, (1), (2), (3)]:
H1—5; H2—10; H3—30.
Para maior conveniência, os Agrupamentos de Índice de Suscetibilidade foram expressos na tabela por meio de letras, de A a G, para
cobrir as seguintes faixas estreitas:
A = 3,0; B = 3,1–3,5; C = 3,6–4,0; D = 4,1–4,5; E = 4,6–5,0; F = 5,1–5,5; G = 5,6–7,0
Esses agrupamentos são usados na Tabela I.2 em conjunção com restrição e espessura para determinar o pré-aquecimento mínimo e a
temperatura de interpasse.
Tabela I.2
Temperaturas Mínimas de Pré-aquecimento e Interpasse para Três Níveis de
Restrição (ver I6.2.4)
Restrição
Nível
Espessuraa
in
Pré-aquecimento Mínimo e Temperatura de Interpasse ( °F)b
Agrupamento de Índice de Suscetibilidade
A B C D E F G
< 3/8 < 65 < 65 < 65 < 65 140 280 300
3/8–3/4 incl < 65 < 65 65 140 210 280 300
Baixo > 3/4–1-1/2 incl < 65 < 65 65 175 230 280 300
> 1-1/2–3 incl 65 65 100 200 250 280 300
> 3 65 65 100 200 250 280 300
< 3/8 < 65 < 65 < 65 < 65 160 280 320
3/8–3/4 incl < 65 < 65 65 175 240 290 320
Médio > 3/4–1-1/2 incl < 65 65 165 230 280 300 320
> 1-1/2–3 incl 65 175 230 265 300 300 320
> 3 200 250 280 300 320 320 320
< 3/8 < 65 < 65 < 65 100 230 300 320
3/8–3/4 incl < 65 65 150 220 280 320 320
Alto > 3/4–1-1/2 incl 65 185 240 280 300 320 320
> 1-1/2–3 incl 240 265 300 300 320 320 320
> 3 240 265 300 300 320 320 320
(Continua)
a
A espessura é aquela da parte mais grossa soldada.
b
“<” indica que temperaturas de pré-aquecimento e interpasse mais baixas que a temperatura mostrada podem ser adequadas para evitar
trinca de hidrogênio. Temperaturas de pré-aquecimento e interpasse que sejam ambas mais baixas que a temperatura listada e mais
baixas que a Tabela 3.2 devem ser qualificadas por teste.
AWS D1.1/D1.1M:2010 ANEXO I
327
Tabela I.2.9 (Continuação)
Temperaturas Mínimas de Pré-aquecimento e Interpasse para Três Níveis de
Restrição (ver I6.2.4)
Restrição
Nível
Espessuraa
mm
Pré-aquecimento Mínimo e Temperatura de Interpasse ( °C)b
Agrupamento de Índice de Suscetibilidade
A B C D E F G
< 10 < < 20 < 20 < 20 < 20 60 140 150
10–20 incl < 20 < 20 20 60 100 140 150
Baixo > 20–38 incl < 20 < 20 20 80 110 140 150
> 38-75 incl 20 20 40 95 120 140 150
> 75< 20 20 40 95 120 140 150
< 10 < < 20 < 20 < 20 < 20 70 140 160
10–20 incl < 20 < 20 20 80 115 145 160
Médio > 20-38 incl 20 20 75 110 140 150 160
> 38-75 incl 20 80 110 130 150 150 160
> 75< 95 120 140 150 160 160 160
< 10 < < 20 < 20 20 40 110 150 160
10–20 incl < 20 20 65 105 140 160 160
Alto > 20-38 incl 20 85 115 140 150 160 160
> 38-75 incl 115 130 150 150 160 160 160
> 75< 115 130 150 150 160 160 160
a
A espessura é aquela da parte mais grossa soldada.
b
“<” indica que temperaturas de pré-aquecimento e interpasse mais baixas que a temperatura mostrada podem ser adequadas para evitar
trinca de hidrogênio. Temperaturas de pré-aquecimento e interpasse que sejam ambas mais baixas que a temperatura listada e mais
baixas que a Tabela 3.2 devem ser qualificadas por teste.
AWS D1.1/D1.1M:2010 ANEXO I
328
Observações:
1. CE = C + (Mn + Si)/6 + (Cr + Mo + V)/5 + (Ni + Cu)/15.
2. Ver I5.2(1), (2), ou (3) para características de zona aplicáveis.
Figura I.1 - Classificação de Zona de Aços (ver I5.1)
Figura I.2—Taxa de Resfriamento Crítica para 350 HV e 400 HV (ver I3.3)
AWS D1.1/D1.1M:2010 ANEXO I
329
Figura I.3—Gráficos para Determinar Taxas de Resfriamento para Soldas de
Filete SAW de Passe Único (ver I6.1.3)
AWS D1.1/D1.1M:2010 ANEXO I
330
Figura I.3 (Continuação) - Gráficos para Determinar Taxas de Resfriamento
para Soldas de Filete SAW de Passe Único (ver I6.1.3)
AWS D1.1/D1.1M:2010 ANEXO I
331
Figura I.3 (Continuação) - Gráficos para Determinar Taxas de Resfriamento
para Soldas de Filete SAW de Passe Único (ver I6.1.3)
AWS D1.1/D1.1M:2010
332
Figura I.4 - Relação Entre Tamanho de Solda de Filete e Entrada de Energia
(ver I6.1.5)
AWS D1.1/D1.1M:2010 ANEXO J
333
Anexo J (Normativo)
Símbolos para Projeto de Solda de Conexão Tubular
Esse anexo é parte de Dl.1/D1.1M:2010, Código de Soldagem Estrutural- Aço, da AWS e inclui elementos
obrigatórios para uso com esse padrão.
Símbolos usados na Cláusula 2, Parte D, são como segue:
Símbolo Significado Símbolo Significado
α (alfa) parâmetro oval de corda f b tensão de flexão em membro de ramificação
a largura de produto de seção oca retangular f b tensão de flexão em membro principal
ax razão de a para sin fby tensão nominal, flexão no plano
b largura transversal de tubos retangulares fbz tensão nominal, flexão fora do plano
bet (be(ov)) largura efetiva de ramificação no membro
conectado
fn tensão nominal em membro de ramificação
beo (be) largura efetiva de ramificação na corda g folga em conexões em K-
beoi (bep) largura efetiva do membro para perfuração
externa
H profundidade de braçadeira (corda de caixa) no plano
da armação
bgap largura efetiva em folga de conexões em K- γ parâmetro de flexibilidade do membro principal
(gama); razão R para tc (seções circulares); razão
de D para 2tc (seções de caixa)
β (beta) razão de diâmetro de db para D; razão
de rb para R (seções circulares); razão de
b para D (seções de caixa)
γb razão de raio para espessura de tubo em transição
γt membro conectado γ(para conexões sobrepostas)
βgap largura efetiva adimensional em folga de
conexões em K-
ID diâmetro interno
βeoi razão adimensional de beoi para a largura do
membro principal
K– configuração de conexão
βeop largura efetiva adimensional do membro para
perfuração externa
Ka fator de comprimento relativo
βeff β efetivo para plastificação de face de corda
em conexão em K-
Kb fator de seção relativa
c dimensão de canto λ (lambda) parâmetro de sensibilidade de interação
D diâmetro externo OD (tubos circulares) ou
largura externa de membro principal
(seções de caixa)
L tamanho de dimensão de solda de filete como
mostrado na Figura 2.14
D razão de dano de fadiga cumulativa, Σ L comprimento de lata de junta
db diâmetro do membro de ramificação LF fator de carga (fator de segurança parcial para carga
em LRFD)
η (eta) razão de ax para D l1 comprimento de solda real onde a ramificação
AWS D1.1/D1.1M:2010
334
encontra o membro principal
εTR (épsilon) faixa de deformação total
Símbolo Significado Símbolo Significado
F tamanho de extremidade de solda de filete l2 comprimento (um lado) de corda projetado para solda
de sobreposição
FEXX resistência à tração mínima classificada do
depósito de solda
M momento aplicado
Fy limite de escoamento de metal base Mc momento em corda
Fyo limite de escoamento de membro principal Mu momento de ruptura
fa tensão axial em membro de ramificação n ciclo de carga aplicada
fa tensão axial em membro principal N número de ciclos permitidos em dada faixa de tensão
Pc carga axial em corda OD diâmetro externo
Pu carga de ruptura P carga axial em membro de ramificação
P┴ componente de carga de membro individual
perpendicular ao eixo do membro
principal
tb espessura de parede de membro de ramificaçãomembro
de ramificação para dimensionamento de soldas em
chanfro CJP
membro mais fino para dimensionamento de soldas em
filete e soldas em chanfro PJP
p comprimento de alcance projetado de
membro de sobreposição
q quantidade de sobreposição tc espessura de parede da espessura de lata da junta do
membro principal
ϕ (phi) ângulo incluído na junta tw tamanho de solda (garganta efetiva)
π (pi) razão de circunferência para diâmetro de
círculo
t'w tw como definido em 2.24.1.6
ψ (psi) ângulo diedro local Ver definição
Anexo K
τ (tau)parâmetro de geometria de espessura relativa a
principal-a-ramificação; razão de tb para tc
ψ (psi bar) ângulo suplementar à mudança de
ângulo
diedro local em transição
τ1 tsobreposição/tconectado
Qb modificador de geometria (teta) ângulo agudo entre dois eixos de membros
ângulo entre linhas de centro de membro
ângulo de intersecção de cinta
vf termo de interação de tensão
Qq geometria de membro de ramificação e
modificador de padrão de carga
Ū razão de utilização de tensão axial e de flexão para
tensão permissível, em ponto sob consideração no
membro principal
R raio externo, membro principal Vp tensão de puncionamentopuncionamento
R abertura de raiz (encaixe de junta) Vw tensão permissível para solda entre membros de
ramificação
r raio de canto de seções ocas retangulares
como medido pelo calibrador de raio
x variável algébrica
r raio efetivo de intersecção Y– configuração de conexão
rb raio de ramificação y variável algébrica .
rm raio médio para garganta efetiva de soldas Z Dimensão de perda Z
SFC fator de concentração de tensão ζ (zeta) razão de folga para D
Σl1 (sigma) soma de comprimentos reais de solda
T– configuração de conexão
TCBR tensão/compressão ou flexão ou ambos,
faixa total de tensão nominal
t espessura de parede de tubo
AWS D1.1/D1.1M:2010
335
Anexo K (Informativo)
Termos e Definições
Esse anexo não é parte de D1.1/D1.1 M:2010, Código de Soldagem Estrutural-Aço, da AWS, mas está incluído
apenas para propósito de informação.
Os termos e definições nesse glossário são divididos em três categorias: (1) termos gerais de soldagem compilados
pelo Comitê de Definições e Símbolos da AWS; (2) termos, definidos pelo Comitê de Soldagem Estrutural da AWS,
os quais aplicam-se apenas a UT, designados por (UT) em seguida do termo; e (3) outros termos, precedidos por
asteriscos, que são definidos conforme se relacionam a esse código.
Para o propósito desse documento, os seguintes termos e definições aplicam-se:
A
*anexos auxiliares. Membros ou acessórios anexados
aos membros principais carregadores de tensão por
soldagem. Tais membros podem ou não carregar
cargas
*ângulo de aresta (estruturas tubulares). O ângulo
agudo entre uma aresta de bisel feita em preparação
para soldagem e uma tangente à superfície do
membro, medida localmente em um plano
perpendicular à linha de intersecção. Todos os biséis
abertos para o lado de fora da cinta.
*ângulo de bisel. O ângulo entre o bisel de um membro
de junta e um plano perpendicular à superfície do
membro.
*ângulo de chanfro (estruturas tubulares). O ângulo
entre faces opostas do chanfro a serem preenchidas
com metais de solda determinados após a junta ser
ajustada.
*ângulo de intersecção de cinta, 8 (estruturas
tubulares). O ângulo agudo formado entre linhas de
centro de cinta.
*ângulo diedro local, '¥ (estruturas tubulares). O
ângulo, medido em um plano perpendicular à linha da
solda, entre tangentes às superfícies externas dos
tubos sendo anexados na solda. O ângulo diedro
externo, em que uma seção localizada da conexão é
observada, de tal forma que as superfícies de
intersecção podem ser tratadas como planas.
*ângulo diedro. Ver ângulo diedro local.
*atenuação (UT) A perda em energia acústica que
ocorre entre quaisquer dois pontos de deslocamento.
Essa perda pode ser devida a absorção, reflexo, etc.
(Nesse código, usando o método de teste de onda
pulso-eco de cisalhamento, o fator de atenuação é 2
dB por polegada de distância do caminho de som após
a primeira polegada.)
abertura de raiz. Uma separação da raiz de junta entre
as peças.
anel de reforço. Reforço na forma de um anel,
geralmente usado na soldagem de um cano.
ângulo de bisel. O ângulo entre o bisel de um membro
de junta e um plano perpendicular à superfície do
membro.
ângulo de chanfro. O ângulo incluído total de chanfro
entre peças
B
*barra de prateleira. Placas ou barras de aço, ou
elementos similares usados para suportar o
transbordamento de metal de solda em excesso
AWS D1.1/D1.1M:2010 ANEXO K
336
depositado em uma junta de solda em chanfro
horizontal.
*base de pinos. A ponta de pino na extremidade de
soldagem, inclusive fluxo e contêiner, e a 1/8 in [3
mm] do corpo do pino ajacente à ponta.
*bolsa de gás Um termo não padronizado para
porosidade.
C
*calafetagem. Deformação plástica de superfícies de
solda e metal base por meios mecânicos para selar ou
obscurecer descontinuidades
*camada. Um estrato de metal de solda ou material de
superfície. A camada pode consistir de um ou mais
cordões de solda colocados lado a lado.
*caminho V- (UT) A distância que um feixe sonoro de
onda de cisalhamento percorre da interface de
material de teste da unidade de busca à outra face do
material de teste e de volta à superfície original.
*cano. Seções transversais circulares ocas produzidas
ou fabricadas de acordo com uma especificação de
produto de cano. Ver tubular.
*Código de Obras. O termo Código de Obras, sempre
que a expressão ocorre nesse código, refere-se à lei ou
especificação de obras ou outros regulamentos de
construção em conjunção com o qual esse código é
aplicado. Na ausência de qualquer lei ou
especificação de obras ou outros regulamentos de
construção localmente aplicáveis, é recomendado que
seja requerido que a construção esteja em
conformidade com a Especificação para Projeto,
fabricação e Ereção de Aço Estrutural para Obras do
American Institute of Steel Construction (AISC).
*comprimento efetivo de solda. O comprimento ao
longo do qual a seção transversal corretamente
proporcionada da solda existe. Em uma solda curva,
deve ser medido ao longo do eixo da solda.
*conexão tubular. Uma conexão na porção de uma
estrutura que contém dois ou mais membros de
intersecção, dos quais pelo menos um é um membro
tubular.
*CVN. Resistência ao impacto no entalhe em V de
Charpy.
certificação de soldador. Certificação escrita de que
um soldador produziu soldas atendendo um padrão
prescrito de desempenho de soldador.
CJP (penetração completa de junta). Uma condição
de raiz de junta em uma solda em chanfro na qual
metal de solda estende-se através da espessura de
junta.
cordão de solda. Um tipo de cordão de solda feito com
oscilação transversal.
cordão de solda. Uma solda resultante de um passe.
Ver passe estreito e cordão de solda.
cratera. Uma depressão na face de solda na terminação
de um cordão de solda.
D
*decibel (dB) (UT). A expressão logarítmica de uma
razão de duas amplitudes ou intensidade de energia
acústica.
*deformação hot-spot (estruturas tubulares). A faixa
total cíclica de deformação que seria medida no ponto
de concentração mais alta de tensão em uma conexão
soldada. Ao medir deformação hot-spot, o
extensiômetro deve ser suficientemente pequeno para
evitar fazer a média de deformações altas e baixas nas
regiões de gradientes
*descontinuidade do tipo fusão. Significa inclusão de
escória, fusão incompleta, penetração de junta
incompleta e descontinuidades similares associadas
com fusão.
*descontinuidade inaceitável. Ver defeito.
*descontinuidade transversal. Uma descontinuidade
de solda cuja maior dimensão é em direção
perpendicular ao eixo da solda "X", ver Anexo M,
Formulário M-11.
*desenhos. Refere-se a planos de projeto e desenhos de
detalhe, e planos de ereção.
*distância de caminho de som (UT). A distância entre
a interface de material de teste da unidade de busca e
o refletor como medido ao longo da linha de centro
do feixe sonoro.
*distância de feixe sonoro (UT). Ver distância de
caminho de som.
*documentos de contrato. Quaisquer códigos,
desenhos ou requisitos adicionais que são
contratualmente especificados pelo Proprietário.
defeito. Uma descontinuidade (ou descontinuidades)
que por natureza ou efeito acumulado (por exemplo,
comprimento total de trinca) tornam uma peça ou
produto incapazes de atender os padrões e
especificações de aceitação mínimos aplicáveis. Esse
termo designa rejeição.
descontinuidade. Uma interrupção da estrutura típica
de um material, tal como uma falta de homogeneidade
em suas características mecânicas, metalúrgicas ou
físicas. Uma descontinuidade não necessariamente é
um defeito.
downhand. um termo não padronizado para posição
plana de soldagem.
E
*eletrodo paralelo Dois eletrodos conectados
eletricamente em paralelo e exclusivamente à mesma
fonte de energia. Ambos os eletrodos são
normalmente alimentados por meio de um único
alimentador de eletrodo. Corrente de soldagem,
quando especificada, é a total para os dois.
AWS D1.1/D1.1M:2010 ANEXO K
337
*eletrodo paralelo Ver penetração de junta parcial
SAW. Ver passe PJP. Ver passe de solda.
*eletrodo único. Um eletrodo conectado
exclusivamente a uma fonte de energia que pode
consistir de uma ou mais unidades de foça elétrica.
*eletrodos múltiplos. A combinação de dois ou mais
sistemas de eletrodo paralelo ou único. Cada um dos
sistemas componentes tem sua própria fonte de
energia e seu próprio alimentador de eletrodo.
*Empreiteiro. Qualquer empresa, ou indivíduo
representando uma empresa, responsável pela
fabricação, ereção ou soldagem em conformidade
com as provisões desse código.
*Engenheiro. Um indivíduo devidamente designado
que age pelo, e em nome do, Proprietário em todos os
assuntos no âmbito do código.
*espécime de teste de metal depositado. Um espécime
de teste com a seção reduzida composta inteiramente
de metal de solda.
EGW (soldagem por eletrogás). Um processo de
soldagem a arco que usa um arco entre um eletrodo
de metal de adição contínuo e a poça de fusão,
empregando progressão de soldagem
aproximadamente vertical com reforço para confinar
o metal de solda derretido. O processo é usado com
ou sem gás de proteção fornecido externamente e sem
a aplicação de pressão.
eixo de solda. Uma linha através do comprimento de
uma solda, perpendicular a e no centro geométrico de
sua seção transversal.
ESW (soldagem por eletroescória). Um processo de
soldagem que produz coalescência de metais com
escória derretida que derrete o metal de adição e a
superfície da peça. A poça de fusão é protegida por
essa escória, que se move através de toda a seção
transversal da junta conforme a soldagem progride. O
processo é iniciado por um arco que aquece a escória.
O arco é então extinguido pela escória condutiva, que
é mantida derretida por sua resistência à corrente
elétrica passando entre os eletrodos e as peças.
extremidade de solda. A junção da face de solda e o
metal base.
F
face de chanfro. A superfície de um membro de junta
incluído no chanfro.
face de raiz. A porção de face em chanfro na raiz de
junta.
face de solda. A superfície exposta de uma solda no
lado a partir do qual a soldagem foi feita.
*fadiga. Fadiga, como usado aqui, é definida como o
dano que pode resultar em fratura após um número
suficiente de flutuações de tensão. Faixa de tensão é
definida como a magnitude de pico dessas flutuações.
No caso de reversão de tensão, a faixa de tensão será
computada como a soma numérica (diferença
algébrica) de tensões de compressão e de tração
máxima repetida, ou a soma de tensões de
cisalhamento de direção oposta em um dado ponto,
resultando em mudança de condições de carga.
*Falta de nitizez geométrica. A granulação ou falta de
definição em uma imagem radiográfica resultante do
tamanho da fonte, distância objeto-a-filme e distância
fonte-a-objeto. A falta de nitidez geométrica pode ser
expressa matematicamente como: -
Ug = F (Li- Lo)Lo
Em que Ug é a falta de nitidez geométrica, F é o
tamanho do ponto focal ou radiação gama, Li é a
distância fonte-a-filme e L) é a distância fonte-a-
objeto.
*FCAW-G (soldagem a arco com arame tubular -
autoprotegida). Um processo de soldagem a arco
com arame tubular em que a proteção é
exclusivamente fornecida por um fluxo contido no
eletrodo tubular.
*FCAW-G (soldagem a arco com arame tubular -
com gás de proteção). Uma variação de processo de
soldagem a arco com arame tubular na qual proteção
adicional é obtida de um gás ou mistura de gás
fornecido externamente.
*fluxo de liga. Um fluxo do qual o conteúdo de liga do
metal de solda é largamente dependente.
FCAW (soldagem a arco com arame tubular) Um
processo de soldagem a arco que usa um arco entre
um eletrodo contínuo de metal de adição contínuo e a
poça de fusão. O processo é usado com gás de
proteção de um fluxo contido no eletrodo tubular,
com ou sem proteção adicional de um gás fornecido
externamente, e sem a aplicação de pressão.
folga de raiz. Um termo não padronizado para abertura
de raiz, junta de raiz. Ver raiz de junta.
fusão completa. Fusão sobre todas as faces de fusão e
entre todos os cordões de solda adjacentes.
fusão. O derretimento conjunto de metal de adição e
metal base (substrato), ou apenas de metal base, para
produzir uma solda.
G
garganta de uma solda de filete.
garganta de uma solda em chanfro. um termo não
padronizado para tamanho de solda em chanfro.
garganta real A menor distância entre a raiz de solda e
a face de uma solda de filete.
garganta teórica. A distância do começo da raiz de
junta perpendicular à hipotenusa do maior triângulo
retângulo que pode ser inscrito em uma seção
transversal de uma solda de filete. A dimensão é
baseada na assunção de que a abertura de raiz é igual
a zero.
gás de proteção. Gás protetor usado para prevenir ou
reduzir contaminação atmosférica.
AWS D1.1/D1.1M:2010 ANEXO K
338
GMAW (soldagem Mig/Mag) Um processo de
soldagem a arco que usa um arco entre um eletrodo
de metal de adição contínuo e poça de fusão. O
processo é usado com proteção de um gás de proteção
fornecido externamente e sem a aplicação de pressão.
GMAW-S (soldagem Mig/Mag-arco de curto
circuito) Uma variação de processo de soldagem
Mig/Mag na qual o eletrodo consumível é depositado
durante curto-circuitos repetidos.
goivagem a arco Goivagem térmica que use uma
variação de processo de corte a arco para formar um
bisel ou chanfro.
goivagem com oxigênio. Goivagem térmica que usa
uma variação de processo de corte para formar um
bisel ou chanfro.
goivagem por trás. A remoção de metal de solda e
metal base do lado de raiz da solda de uma junta
soldada para facilitar fusão completa e CJP na
soldagem subsequente a partir daquele lado.
goivagem térmica. Uma variação de processo de corte
térmico que remove metal ao derreter ou queimar
toda a porção removida, para formar um bisel ou
chanfro.
goivagem. Ver goivagem térmica.
GTAW. Soldagem Tig.
guia consumível ESW. Uma variação de processo de
soldagem por eletroescória na qual metal de adição é
fornecido por um eletrodo e seu membro guia.
guia consumível ESW. Ver ESW.
H
HAZ (zona afetada por calor) A porção do metal base
cujas propriedades mecânicas ou microestrutura
tenham sido alterados pelo calor da soldagem,
brasagem ou corte térmico.
I
*indicação (UT) O sinal exibido no osciloscópio
significando a presença de um refletor de onda de
som sendo testado.
*Inspetor de Verificação. A pessoa devidamente
designada que age pelo, e em nome do, Proprietário
em todas as inspeções e assuntos de qualidade
designados pelo Engenheiro.
*Inspetor do Empreiteiro A pessoa devidamente
designada que age pelo, e em nome do, Empreiteiro
em todas as inspeções e assuntos de qualidade no
âmbito do código e dos documentos de contrato.
*IQI (indicador de qualidade de imagem). Um
dispositivo cuja imagem em uma radiografia é usada
para determinar nível de qualidade de RT. Não é
pretendido para uso no julgamento do tamanho nem
para estabelecer limites de aceitação de
descontinuidades.
indicador de qualidade de imagem. Ver IQI.
J
junta. A junção de membros ou as arestas de membros
que serão anexados ou foram anexados.
junta de ângulo. Uma junta entre dois membros
localizada aproximadamente em um ângulo reto em
relação à outra, na forma de um L.
junta de topo. Uma junta entre dois membros
alinhados aproximadamente no mesmo plano.
junta em T-. Uma junta entre dois membros localizada
aproximadamente em um ângulo reto em relação à
outra, na forma de uma extremidade de solda em T.
Ver extremidade de solda.
junta sobreposta. Uma junta entre dois membros
sobrepostos em planos paralelos.
junta soldada simples. Uma junta que é soldada a
partir de apenas um lado.
*junta tubular. Uma junta na interface criada por um
membro tubular em intersecção com outro membro
(que pode ou não ser tubular).
L
ligação soldada. Uma montagem cujas peças
componentes são anexadas por soldagem
*linha de referência horizontal (UT). Uma linha
horizontal perto do centro do âmbito de instrumento
UT para a qual todos os ecos são ajustados para
leitura dB.
M
máquina de soldagem. Equipamento usado para
realizar a operação de soldagem. Por exemplo,
máquina de soldagem de tampão, máquina de
soldagem a arco e máquina de soldagem de costura.
martelamento. O trabalho mecânico em metais que
usa golpes de impacto.
metal base. O metal ou liga que é soldado, brasado ou
cortado.
metal de adição. O metal ou liga a ser acrescentado ao
fazer uma junta soldada ou brasada.
mordedura. Um chanfro derretido em um metal base
adjacente à extremidade de solda ou raiz de solda e
deixada sem preenchimento por metal de solda.
MT. Teste de partícula magnética.
N
NDT. Ensaio não-destrutivo
*nível de defeito (UT). Ver nível de indicação.
AWS D1.1/D1.1M:2010 ANEXO K
339
*nível de escaneamento (UT). A configuração dB
usada durante escaneamento, como descrito nas
Tabelas 6.2 e 6.3.
*nível de indicação (UT). A leitura de controle de
ganho calibrado ou atenuação obtida de uma linha de
referência de indicação de altura a partir de uma
descontinuidade.
*nível de referência (UT). A leitura de decibel obtida
de uma linha de referência de indicação de altura a
partir de um refletor de referência.
*nível de rejeição do comprimento de amplitude
(UT) O comprimento máximo de descontinuidade
permitido por várias taxas de indicação associadas
com tamanho de solda, como indicado nas Tabelas
6.2 e 6.3.
*nó (UT) Ver perna.
O
*OEM (Fabricante de Equipamento Original). Um
único Empreiteiro que assume algumas ou todas as
responsabilidades atribuídas por esse código ao
Engenheiro.
operador de soldagem. Aquele que opera equipamento
robótico, mecanizado, automático ou de controle
adaptativo de soldagem.
oxicorte (OC) Um grupo de processos de corte térmico
que separa ou remove metal por meio de reação
química entre oxigênio e o metal base a temperatura
elevada. A temperatura necessária é mantida por
aquecimento a partir de um arco, uma chama de gás
ou outra fonte.
P
*passe de acabamento. Um ou mais passes de solda
que formam a face da solda (superfície exposta de
solda concluída). Passes de acabamento adjacentes
podem cobrir parcialmente, mas não completamente,
um passe de acabamento.
passe de reforço. Um passe de solda feito para uma
solda de reforço.
passe de solda. Uma única progressão de soldagem ao
longo de uma junta. O resultado de um passe é um
cordão ou camada de solda.
passe estreito. Um tipo de cordão de solda feito sem
movimento de entrelaçamento apreciável.
penetração completa. Um termo não padronizado para
CJP.
penetração de junta. A distância do metal de solda
estende-se a partir da face de solda em uma junta,
exclusiva de reforço de solda.
*perna (UT) O caminho que a onda de cisalhamento
percorre em uma linha direta antes de ser refletido
pela superfície do material sendo testado. Ver esboço
para identificação de perna. Observação: Perna I
mais perna II é igual a um caminho em V.
perna de solda de filete. A distância da raiz da junta à
extremidade da solda de filete.
perna de uma solda de filete. Ver perna de solda de
filete.
PJP. Penetração de junta que é intencionalmente menos
que completa.
*porosidade de encanamento (ESW e EGW).
Porosidade alongada cuja maior dimensão jaz em uma
direção aproximadamente paralela ao eixo de solda.
*porosidade de encanamento (geral). Porosidade
alongada cuja maior dimensão jaz em uma direção
aproximadamente normal à superfície de solda.
Frequentemente designada como orifícios de pino
quando a porosidade estende-se à superfície de solda.
*posição vertical (soldagem em cano). Aposição de
uma junta de cano na qual soldagem é realizada na
posição horizontal e o cano não é girado durante a
soldagem (ver Figuras 4.1, 4.2 e 4.4)
porosidade. Descontinuidades do tipo cavidade
formadas por aprisionamento de gás durante a
solidificação ou em um depósito de pulverização
térmica.
posição de soldagem horizontal, solda de filete. A
posição de soldagem em que a solda está no lado de
cima de uma superfície aproximadamente horizontal e
contra uma superfície aproximadamente vertical (ver
Figuras 4.1, 4.2, 4.3 e 4.5).
posição de soldagem suspensa. A posição de
soldagem na qual a soldagem é realizada a partir do
lado de baixo da junta (ver Figuras 4.1, 4.2, 4.3 e 4.5).
posição fixada horizontalmente (soldagem de cano)
A posição de uma junta de cano na qual o eixo do
cano é aproximadamente horizontal e o cano não é
girado durante a soldagem (ver Figuras 4.1, 4.2 e 4.4).
posição girada horizontalmente (soldagem de cano)
A posição de uma junta de cano na qual o eixo do
cano é aproximadamente horizontal, e a soldagem é
realizada na posição plana pela rotação do cano (ver
Figuras 4.1, 4.2 e 4.4).
posição plana de soldagem. A posição de soldagem
usada para soldar a partir da parte de cima da junta
em que o eixo de solda é aproximadamente
horizontal, e a face de solda jaz em um plano
aproximadamente horizontal.
AWS D1.1/D1.1M:2010 ANEXO K
340
posição vertical de soldagem. A posição de soldagem
na qual o eixo de solda, no ponto de soldagem, é
aproximadamente vertical e a face de solda jaz em um
plano aproximadamente vertical (ver Figuras 4.1, 4.2,
4.3 e 4.5).
pré-aquecimento. A aplicação de calor ao metal base
imediatamente antes de soldagem, brasagem, corte ou
pulverização térmicos.
processo mecanizado (XXXX-ME). Uma operação
com equipamento que requer ajuste manual de um
operador em resposta a observação visual, com o
maçarico, pistola, montagem de guia de arame ou
porta eletrodo seguro por um dispositivo mecânico.
Ver soldagem mecanizada.
profundidade de fusão. A distância a que a fusão se
estende no metal base ou cordão anterior a partir da
superfície derretida durante a soldagem.
*procedimento de soldagem de junta. Os materiais e
métodos e práticas detalhados empregados na
soldagem de uma junta particular.
*Proprietário. O indivíduo ou empresa que exerce
propriedade legal do produto ou montagem estrutural
produzido para esse código.
*PT. Teste de líquido penetrante.
*PWHT. Tratamento térmico pós-solda.
Q
qualificação de desempenho de soldador. A
demonstração da habilidade de um soldador em
produzir soldas que atendas aos padrões prescritos.
qualificação WPS. A demostração de que soldas feitas
por um procedimento específico podem atender
padrões prescritos.
qualificação. Ver qualificação de desempenho de
soldador e qualificação WPS.
R
raiz de junta. Aquela porção de uma junta a ser
soldada em que os membros se aproximam mais um
do outro. Em seção transversal, a raiz de junta pode
ser um ponto, uma linha ou uma área.
raiz de solda. Os pontos, como mostrado em seção
transversal, nos quais a superfície de raiz faz
intersecção com as superfícies de metal base.
raiz de solda. Ver raiz de solda.
*rebarba. O material que é expelido ou espremido da
junta de solda e que se forma ao redor da solda.
*refletor de referência (UT). O refletor de geometria
conhecida contido no bloco de referência IIW ou
outros blocos aprovados.
reforço. Um material ou dispositivo colocado contra o
lado de trás da junta, ou em ambos os lados de uma
solda em ESW e EGW, para suportar e reter metal de
solda derretido. O material pode ser parcialmente
fundido ou não durante a soldagem e pode ser metal
ou não metal.
reforço de solda. Metal de solda que excede a
quantidade requerida para preencher uma junta.
reforço de solda. Ver reforço de solda.
*resistência à tração nominal do metal de solda. A
resistência à tração do metal de solda indicada pelo
número de classificação do metal de adição (por
exemplo, resistência à tração nominal de E60XX é 60
ksi [420 MPa]).
*resolução (UT) A habilidade de equipamento UT de
dar indicações separadas de refletores próximos.
*RT. Teste radiográfico.
respingo. As partículas de metal expelidas durante
soldagem de fusão que não forma uma parte da solda.
S
SAW (soldagem a arco submerso). Um processo de
soldagem a arco que usa um arco, ou arcos, entre um
eletrodo, ou eletrodos, de metal base e a poça de
fusão. O arco e metal derretido são protegidos por
uma cobertura de fluxo granular nas peças. O
processo é usado sem pressão e com metal de adição
a partir do eletrodo e às vezes a partir de uma fonte
suplementar (vara, fluxo ou grânulos de metal de
soldagem).
sequência aleatória. Uma sequência longitudinal em
que os incrementos de cordão de solda são feitos
aleatoriamente.
sequência de soldagem. A ordem na qual fazer as
soldas em uma ligação soldada.
SMAW (Soldagem Tig com proteção). Um processo
de soldagem a arco com um arco entre um eletrodo
coberto e uma poça de fusão. O processo é usado com
proteção da decomposição da cobertura de eletrodo,
sem a aplicação de pressão e com metal de adição a
partir do eletrodo.
solda. uma coalescência localizada de metais ou não
metais produzida pelo aquecimento dos materiais à
temperatura de soldagem, com ou sem a aplicação de
pressão, ou pela aplicação de pressão apenas e com
ou sem o uso de material de enchimento.
*solda em chanfro CJP (estruturas estaticamente e
ciclicamente carregadas). Uma solda em chanfro
que foi feita a partir de ambos os lados ou a partir de
um lado em um reforço, tendo CJP e fusão de metal
base e de solda por toda a profundidade da junta.
*solda em chanfro CJP (estruturas tubulares). Uma
solda em chanfro que tenha CJP e fusão de solda e
metal base por toda a profundidade da junta ou como
detalhado nas Figuras 2.21, 4.26, 3.6 a 3.10. Uma
solda em chanfro CJP tubular a partir de apenas um
lado, sem reforço, é permitida quando o tamanho ou
AWS D1.1/D1.1M:2010 ANEXO K
341
configuração, ou ambos, impedem acesso ao lado da
raiz da solda.
solda contínua. Uma solda que se estende
continuamente de uma extremidade a outra de uma
junta. Quando a junta é essencialmente circular, ela
estende-se completamente ao redor da junta.
solda de auxílio à construção. Uma solda feita para
anexar uma peça ou peças à ligação soldada para uso
temporário no manuseio, remessa ou trabalho na
estrutura.
solda de reforço. Reforço na forma de uma solda.
solda de tampão (plug). Uma solda feita em um
orifício circular em um membro de uma junta
fundindo aquele membro a outro membro. Um
orifício soldado por filete não deve ser interpretado
em conformidade com essa definição.
solda de tampão (slot). Uma solda feita em um
orifício alongado em um membro de uma junta
fundindo aquele membro a outro membro. O orifício
pode estar aberto em uma extremidade. Um tampão
soldado por filete não deve ser interpretado em
conformidade com essa definição.
solda de topo. Um termo não padronizado para uma
solda em uma junta de topo. Ver junta de topo.
solda defeituosa. Uma solda contendo um ou mais
defeitos.
solda descontínua. Uma solda na qual a continuidade é
quebrada por espaços não soldados recorrentes.
solda em chanfro bisel curvado. Uma solda no
chanfro formado entre um membro de junta com uma
superfície curva e outra com uma superfície planar.
solda em chanfro. Uma solda feita no chanfro entre
peças.
solda posicionada. Uma solda feita em uma junta que
tenha sido colocada para facilitar a feitura da solda.
solda provisória. Uma solda feita para manter peças de
uma ligação soldada em alinhamento apropriado até
que as soldas finais sejam feitas.
solda traseira. Uma solda feita na parte de trás de uma
solda em chanfro única.
soldabilidade. A capacidade de um material de ser
soldado sob as condições de fabricação impostas a
uma estrutura específica, projetada adequadamente, e
de desempenhar satisfatoriamente o serviço
pretendido.
soldador ponteador. Um montador mecânico, ou
alguém sob a direção de um montador mecânico, que
faz a solda provisória de partes de uma ligação
soldada para mantê-las em alinhamento apropriado
até que as soldas finais sejam feitas.
soldador. Aquele que realiza uma operação de
soldagem manual ou semi-automática.
*soldagem back-up (estruturas tubulares). O passe
de fechamento inicial em uma solda em chanfro CJP,
feito a partir de apenas um lado, serve como um
reforço para soldagem subsequente, mas não é
considerado como uma parte da solda teórica (Figuras
3.8 a 3.10, Detalhes C e D).
*soldagem de acabamento A continuação de uma
solda de filete ao redor do canto de um membro como
uma extensão da solda principal.
*soldagem de pino (SW) Um processo de soldagem a
arco que produz coalescência de metais por
aquecimento com um arco entre um pino de metal, ou
peça similar, e a outra peça. Quando as superfícies a
serem anexadas são propriamente aquecidas, elas são
unidas sob pressão. Proteção parcial pode ser obtida
pelo uso de um grampo de fixação de cerâmica ao
redor do pino. Fluxo ou gás de proteção pode ou não
pode ser usado.
soldagem a arco com arame tubular. Ver FCAW.
soldagem a arco submerso. Ver SAW.
soldagem automática. Soldagem com equipamento
que requer observação apenas ocasional (ou nenhuma
observação) da soldagem, e nenhum ajuste manual
dos controles de equipamento. Variações desse termo
são brasagem automática, corte térmico automático e
pulverização térmica automática.
soldagem CO2. Um termo não padronizado para
GMAW com gás de proteção de dióxido de carbono.
soldagem de sobreposição, de fusão. A protrusão de
metal de solda além da extremidade de solda ou raiz
de solda.
soldagem em bruto. A condição de metal de solda,
juntas soldadas e ligações soldadas após a soldagem,
mas antes de quaisquer tratamentos térmicos,
mecânicos ou químicos subsequentes.
soldagem manual. Soldagem com maçarico, pistola ou
porta eletrodo seguro e manipulado pelas mãos.
Equipamento acessório, como dispositivos
parcialmente de movimento e controlados
manualmente, alimentadores de material de
enchimento, pode ser usado. Ver soldagem
automática, soldagem mecanizada e soldagem
semiautomática.
soldagem mecanizada (W-ME). Ver processo
mecanizado.
soldagem semi-automática. Soldagem manual com
equipamento que controla automaticamente uma ou
mais das condições de soldagem.
Soldagem Tig com proteção. Ver SMAW.
Soldagem Tig. Ver GMAW.
soldagem. um processo de anexação que produz a
coalescência de materiais pelo seu aquecimento à
temperatura de soldagem, com ou sem a aplicação de
pressão, ou pela aplicação de pressão apenas e com
ou sem o uso de metal de adição. Ver também o
Master Chart of Welding and Allied Processes na
última edição de A3.0 da AWS.
superfície de contato A superfície de contato de um
membro que está em contato com ou em proximidade
de outro membro ao qual está sendo anexado.
AWS D1.1/D1.1M:2010 ANEXO K
342
T
tamanho de solda.
tamanho de solda de filete. Para soldas de filete de
perna igual, os comprimentos de perna do maior
triângulo retângulo isósceles que pode ser inscrito em
uma seção transversal de solda de filete. Para soldas
de filete de perna desigual, os comprimentos de perna
do maior triângulo retângulo que pode ser inscrito em
uma seção transversal de solda de filete.
OBSERVAÇÃO: Quando um membro faz um ângulo
com o outro membro maior que 105', o comprimento
(tamanho) de perna é menos significativo que a
garganta efetiva, que é o fator de controle para a
resistência da solda.
tamanho de solda em chanfro. A penetração de junta
de uma solda em chanfro. guia de solda. Material
adicional que se estende além de ambas as
extremidades da junta, no qual a solda é iniciada ou
concluída.
*tandem Refere-se arranjo geométrico de eletrodos nos
quais a linha através dos arcos é paralela à direção de
soldagem.
*taxa de decibel (UT). Ver taxa de indicação de
termo designado.
*taxa de defeito (UT). Ver taxa de indicação.
*taxa de indicação (UT). A leitura de decibel em
relação ao nível de referência zero após ter sido
corrigido para atenuação de som.
temperatura de interpasse. Em uma solda de passes
múltiplos, a temperatura da área de solda entre passes
de solda.
temperatura de pré-aquecimento, soldagem. A
temperatura do metal base no volume que circunda o
ponto de soldagem imediatamente antes de a
soldagem ser iniciada. Em uma solda de passe
múltiplo, é também a temperatura imediatamente
antes de o segundo passe e subsequentes serem
iniciados.
*tratamento térmico pós-solda. Qualquer tratamento
térmico após soldagem.
*tubular. Um termo genérico que se refere a seções
que incluem produtos de cano (ver cano) e a família
de produtos de seção oca quadrada, retangular e
circular produzida ou fabricada de acordo com uma
especificação de produto tubular. Também conhecido
como seção estrutural oca (HSS)
tubulação de caixa. Produto tubular de seção
transversal quadrada ou retangular. Ver tubular.
U
*UT. Teste de ultrassonografia.
W
*WPS (especificação de procedimento de soldagem).
Os métodos e práticas detalhados que incluem todos
os procedimentos de soldagem de junta envolvidos na
produção de uma ligação soldada. Ver procedimento
de soldagem de junta.
Z
zona afetada por calor. Ver HAZ.
zona de fusão. A área de metal base derretida como
determinado na seção transversal de uma solda
AWS D1.1/D1.1M:2010
343
.
Anexo L (Informativo)
Guia para Escritores de Especificação
Esse anexo não é parte de D1.1/D1.1 M:2010, Código de Soldagem Estrutural-Aço, da AWS, mas está incluído apenas
para propósito de informação.
Uma declaração em um documento de contrato de que toda soldagem seja feita em conformidade com D1.1, Código de
Soldagem Estrutural - Aço, da AWS, cobre apenas os requisitos obrigatórios de soldagem. Outras provisões no código são
opcionais. Aplicam´se apenas quando são especificadas. A seguir estão algumas das provisões opcionais mais comumente
usadas e exemplos de como elas podem ser especificadas.
Provisão Opcional Especificação Típica
Inspeção de Fabricação/Ereção [Quando não for
responsabilidade do Empreiteiro (6.1.1)]
Inspeção de Fabricação/Ereção será realizada pelo
Proprietário.
ou
Inspeção de Fabricação/Ereção será realizada pela
agência de teste escolhida pelo Proprietário.
OBSERVAÇÃO: Quando inspeção de
fabricação/ereção é realizada pelo Proprietário ou
agência de teste do Proprietário, detalhes completos
sobre a extensão de tais testes devem ser dados.
Inspeção de Verificação (6.1.2) Inspeção de Verificação (6.1.2) deve ser realizada pelo
Empreiteiro.
ou
Inspeção de Verificação (6.1.2) deve ser realizada pelo
Proprietário.
ou
Inspeção de Verificação será realizada por uma agência
de teste escolhida pelo Proprietário.
ou
Inspeção de Verificação deve ser abandonada.
Ensaio não-destrutivo. NDT Geral: Para cada tipo de junta e tipo indicado de
NDT a ser usado (que não visual [6.14] e tipo de tensão
[tensão, compressão e cisalhamento]), a extensão da
ANEXO M AWS D1.1/D1.1M:2010
344
inspeção, quaisquer técnicas especiais a serem usadas e
critérios de aceitação. Exemplos específicos (a serem
interpretados como exemplos e não recomendações)
estão a seguir: O Engenheiro deve determinar os
requisitos específicos para cada condição.
Provisão Opcional Especificação Típica
de Fabricação de Estruturas Estaticamente
Carregadas: Momento de Tensão de Conexão de
Soldas em Chanfro em Juntas de Topo—inspeção UT
de 25% de cada das quatro primeiras juntas, caindo
para 10% de cada das juntas remanescentes. Critérios
de aceitação—
Tabela 6.2.
Soldas de filete—MT—Inspeção de 10% do
comprimento de cada solda. Critérios de aceitação—
Tabela 6.1.
Fabricação de Estruturas Estaticamente
Carregadas: Emendas de Topo de Tensão——100%
UT ou 100% RT—Critérios de aceitação—UT:
6.13.2 RT. 6.12.2
Soldas em Ângulo de Penetração Completa em
Membros Carregados Axialmente: Tensões—
100% UT, Padrões de Escaneamento D ou E—
Critérios de aceitação—Tabela
6.3.
Tensões de Compressão—25%, UT, Movimentos de
Escaneamento A, B, ou C.
Critérios de aceitação—Tabela 6.1.
Soldas de filete—MT—Inspeção de 10% do
comprimento de cada solda.—Critérios de
aceitação—6.12.2.
ou
(6.15.3) Rejeição de qualquer parte de uma solda
inspecionada em uma base de menos de100% deve
requerer inspeção de 100% daquela solda.
ou
(6.15.3) Rejeição de qualquer parte de uma solda
inspecionada em uma base de comprimento parcial
deve requerer inspeção do comprimento declarado
em cada lado da descontinuidade.
AWS D1.1/D1.1M:2010
345
Anexo M (Informativo)
Formulários de Inspeção e Qualificação de Equipamento
UT
Esse anexo não é parte de D1.1/D1.1 M:2010, Código de Soldagem Estrutural-Aço, da AWS, mas está incluído apenas
para propósito de informação.
Esse anexo contém exemplos para uso de três formulários, M-8, M-9 e M-10, para registrar dados de teste de UT. Cada
exemplo de formulários M-8, M-9 e M-10 mostra como os formulários podem ser usados na inspeção UT de soldas. O
Formulário M-11 é para relatar resultados de inspeção UT de soldas.
ANEXO M AWS D1.1/D1.1M:2010
346
Relatório de Calibragem de Unidade de Ultrassonografia—AWS
Modelo de Unidade de Ultrassonografia _______________________ Nº de Série _________________________________
Unidade de Busca—Tamanho ________ Tipo Frequência ___ MHz
Calibragem—Data _________________ Intervalo ______________________ Método
Nº de Série do Bloco.________________ Dados ________________ Como Encontrados ____________ Como Ajustados
INSTRUÇÕES SUPLEMENTARES
• Comece com o mais baixo nível dB que pode obter uma indicação de altura de visor de 40 por cento diretamente sobre
os dois na seção do bloco DS. Acrescente 6 dB e registre essa leitura dB "a" e altura de visor "b" como o ponto de início
do gráfico de tabulação.
• Depois de registrar esses valores em Fileiras "a" e "b", deslize o transdutor para obter uma nova altura de visor de 40
por cento. Sem mover o transdutor acrescente 6 dB e registre a nova leitura dB e a nova altura de visor na fileira
apropriada. Repita essa etapa quantas vezes a unidade permitir.
• Ache a média % de valores de tela da Fileira “b” descartando as 3 primeiras e as 3 últimas tabulações. Use isso como
% 2 in calculando a leitura correta.
• A seguinte equação é usada para calcular a Fileira “c”:
%1 é Fileira "b"
%2 é a média da Fileira "b"
descartando a primeira e as três últimas tabulações. ( )
dB1 é Fileira “a”
dB2 é Fileira “c”
• O Erro dB “d” é estabelecido ao subtrair a Fileira “c” da Fileira “a”: (a – c = d).
• O Erro Coletivo dB “e” é estabelecido ao iniciar com o Erro dB “d” mais perto de 0,0, acrescentar coletivamente os
valores de Erro dB “d” horizontalmente, colocando os subtotais na Fileira “e.”
• Movendo horizontalmente, à direita e à esquerda da linha Média de %, ache o intervalo no qual o maior e o menor
números de Erro Coletivo dB permaneça em ou abaixo de 2 dB. Conte o número de espaços horizontais de movimento,
subtraia um e multiplique o restante por seis. Esse valor dB é a faixa aceitável da unidade.
• Para estabelecer a faixa aceitável graficamente, o Formulário M-8 deveria ser usado em conjunto com o Formulário M-9
como segue:
(1) Aplicar os valores de Erro coletivo dB "e" verticalmente na compensação horizontal coincidindo com os valores de
leitura dB "a".
(2) Estabelecer uma linha de curva passando através dessa série de pontos.
(3) Aplicar uma janela horizontal de 2 dB de altura sobre essa curva posicionada verticalmente de forma que a seção mais
longa esteja completamente incluída na altura de Erro 2 dB.
(4) Esse comprimento de janela representa a faixa de dB aceitável da unidade.
Fileira Número 1 2 3 4 5 6 7 8 9 10 11 12 13
a Leitura dB
b Altura de Visor
c Leitura Corrigida
d Erro dB
e Erro Coletivo dB
Precisão Requerida: Faixa mínima permissível é 60 dB %2 (Média)________ %
Equipamento é: Aceitável para Uso ______ Não Aceitável para Uso _______ Data de Expiração da Recal bragem_
Faixa total qualificada ________dB a __________ dB = ___________ dB Erro total _________ dB (Do Gráfico acima)
Faixa total qualificada ________ dB a __________ dB = ___________ dB Erro total ___________ dB (Do Formulário M-9)
Calibrado por ____________________________________ Nível ______________ Local _______________________
Formulário M-8
ANEXO M AWS D1.1/D1.1M:2010
347
Relatório de Calibragem da Unidade—AWS
Modelo de Unidade de Ultrassonografia USN-50 Nº de Série 47859-5014
Unidade de Busca—Tamanho 1” REDONDO Tipo SAB Frequência 2,2 MHz
Calibragem—Data 17 de Junho de 1996 Intervalo 2 Meses Método AWS D1.1
Nº de Série do Bloco 1234-5678 Dados XX Como Encontrados ___Como Ajustados
INSTRUÇÕES SUPLEMENTARES
• Comece com o mais baixo nível dB que pode obter uma indicação de altura de visor de 40 por cento diretamente sobre
os dois na seção do bloco DS. Acrescente 6 dB e registre essa leitura dB "a" e altura de visor "b" como o ponto de início
do gráfico de tabulação.
• Depois de registrar esses valores em Fileiras "a" e "b", deslize o transdutor para obter uma nova altura de visor de 40
por cento. Sem mover o transdutor acrescente 6 dB e registre a nova leitura dB e a nova altura de visor na fileira
apropriada. Repita essa etapa quantas vezes a unidade permitir.
• Ache a média % de valores de tela da Fileira “b” descartando as 3 primeiras e as 3 últimas tabulações. Use isso como
% 2 in calculando a leitura correta.
• A seguinte equação é usada para calcular a Fileira “c”:
%1 é Fileira "b"
%2 é a média da Fileira "b"
descartando a primeira e as três últimas tabulações. ( )
dB1 é Fileira “a”
dB2 é Fileira “c”
• O Erro dB “d” é estabelecido ao subtrair a Fileira “c” da Fileira “a”: (a – c = d).
• O Erro Coletivo dB “e” é estabelecido ao iniciar com o Erro dB “d” mais perto de 0,0, acrescentar coletivamente os
valores de Erro dB “d” horizontalmente, colocando os subtotais na Fileira “e.”
• Movendo horizontalmente, à direita e à esquerda da linha Média de %, ache o intervalo no qual o maior e o menor
números de Erro Coletivo dB permaneça em ou abaixo de 2 dB. Conte o número de espaços horizontais de movimento,
subtraia um e multiplique o restante por seis. Esse valor dB é a faixa aceitável da unidade.
• Para estabelecer a faixa aceitável graficamente, o Formulário M-8 deveria ser usado em conjunto com o Formulário M-9
como segue:
(1) Aplicar os valores de Erro coletivo dB "e" verticalmente na compensação horizontal coincidindo com os valores de
leitura dB "a".
(2) Estabelecer uma linha de curva passando através dessa série de pontos.
(3) Aplicar uma janela horizontal de 2 dB de altura sobre essa curva posicionada verticalmente de forma que a seção mais
longa esteja completamente incluída na altura de Erro 2 dB.
(4) Esse comprimento de janela representa a faixa de dB aceitável da unidade.
Fileira Número 1 2 3 4 5 6 7 8 9 10 11 12 13
a Leitura dB 6 12 18 24 30 36 42 48 54 60 66 72 78
b Altura de Visor 69 75 75 77 77 77 77 78 77 78 79 80 81
c Leitura Corrigida 7,1 12,3 18,3 24,1 30,1 36,1 42,1 48,0 54,1 60,0 65,9 71,8 77,7
d Erro dB -1,1 -0,3 -0,3 -0,1 -0,1 -0,1 -0,1 0,0 -0,1 0,0 +0,1 +0,2 +0,3
e Erro Coletivo dB -2,2 -1,1 -0,8 -0,5 -0,4 -0,3 -0,2 -0,1 -0,1 0,0 +0,1 +0,3 +0,6
Precisão Requerida: Faixa mínima permissível é 60 dB %2 (Média)________ %
Equipamento é: Aceitável para Uso ______ Não Aceitável para Uso _______ Data de Expiração da Recal bragem_
Faixa total qualificada ________dB a __________ dB = ___________ dB Erro total _________ dB (Do Gráfico acima)
Faixa total qualificada ________ dB a __________ dB = ___________ dB Erro total ___________ dB (Do Formulário M-9)
Calibrado por ____________________________________ Nível ______________ Local _______________________
Formulário M-8
ANEXO M AWS D1.1/D1.1M:2010
348
Avaliação de Precisão dB
Formulário M-9
ANEXO M AWS D1.1/D1.1M:2010
349
Avaliação de Precisão dB - AWS
A CURVA NO FORMULÁRIO DE EXEMPLO M-9 É DERIVADA DOS CÁLCULOS D FORMULÁRIO M/8. A ÁREA
SOMBREADA NO GRÁFICO ACIMA MOSTRA A ÁREA SOBRE A QUAL A UNIDADE DE EXEMPLO SE QUALIFICA
PARA ESTE CÓDIGO.
Observação: A primeira linha de exemplo de uso do Formulário M-8 é mostrada nesse exemplo
Formulário M-9
ANEXO M AWS D1.1/D1.1M:2010
350
Valores de Nomograma de Decibel (Atenuação ou Ganho)
Observação: Ver 6.30.2.3 para instrução no uso desse nomograma.
Formulário M-10
ANEXO M AWS D1.1/D1.1M:2010
351
Valores de Nomograma de Decibel (Atenuação ou Ganho) - AWS
Procedimento para uso do Nomograma:
 Estender uma linha direta entre a leitura de dec bel da Fileira "a" aplicada à escala C e a percentagem
correspondente da Fileira "b" aplicada à escala A.
 Usar o ponto em que a linha direta acima cruza a linha pivô B como uma linha pivô para uma segunda linha
direta.
 Estender uma segunda linha direta do ponto de sinal de média na escala A, através do ponto pivô desenvolvido
acima e na escala C de dB.
 Esse ponto na escala C é indicativo de dB corrigido para uso na Fileira "c".
Observações:
1. A leitura dB e escala de 69% são derivadas da leitura de instrumento e tornam-se dB1 “b” e %1 “c,” respectivamente.
2. %2 é 78 – constante.
3. dB2 (que é dB “d” corrigido) é igual a 20 vezes X log (78/69) + 6 ou 7,1.
Formulário M-10
ANEXO M AWS D1.1/D1.1M:2010
352
Relatório de UT de Soldas
Projeto _______________________________________________________________________ Relatório nº _________________________
Identificação de solda ____________________________________________________________
Espessura de material ___________________________________________________________
Junta de solda AWS ______________________________________________________________
Processo de soldagem ___________________________________________________________
Requisitos de qualidade—seção nº
___________________________________________________
Observações ___________________________________________________________________
Número
de
Linha
Número
de
indicação
Ângulo
de
transdutor
A
partir
da
Face
Perna
a
Decibéis Descontinuidade
Avaliação
de
descontinuidade
Observações
Nível
de
indicação
Nível
de
referência
Fator
de
atenuação
Taxa
de
indicação
comprimento
Distância
angular
(caminho
de
som)
Profundidade
da
superfície
"A"
Distância
a b c d De X De Y
1
2
3
4
5
6
7
8
9
10
11
12
13
14
15
16
17
18
19
20
21
22
23
24
25
26
Nós, abaixo assinados, certificamos que as declarações nesse registro estão corretas e que as soldas foram preparadas e testadas em
conformidade com os requisitos da Cláusula 6, Parte F de D1.1/D1.1M, ( __________ ) Código de Soldagem Estrutural-Aço, da AWS.
(ano)
Data de teste ___________________________________
Inspecionado por ________________________________
Observação: Esse formulário é aplicável à Cláusula 2, Partes B
ou C (Estruturas Não Tubulares Estaticamente e Ciclicamente
Carregadas). NÃOT use esse formulário para Estruturas
Tubulares (Cláusula 2, Parte D).
Formulário M-11
Fabricante ou Empreiteiro ______________________________
Autorizado por _______________________________________
Data ________________________________________________
ANEXO M AWS D1.1/D1.1M:2010
353
a
Usar Perna I, II, ou III. Ver glossário de termos (Anexo M)
Observações:
1. Para alcançar Taxa "d"
a. Com instrumentos com controle de ganho, usar a fórmula a-b-c=d.
a. Com instrumentos com controle de atenuação, usar a fórmula b-a-c=d.
c. Um sinal de mais ou menos deve acompanhar o número "d" a menos que "d" seja igual a zero.
2. A distância de X é usada para descobrir o local de uma descontinuidade de solda em uma direção perpendicular à linha
de referência de solda. A menos que esse número seja zero, um sinal de mais ou menos deve acompanhá-lo.
3. A distância de Y é usada para descobrir o local de uma descontinuidade de solda em uma direção paralela à linha de
referência de solda. O número é alcançado ao medir a distância daextremidade "Y" da solda para o começo da referida
descontinuidade.
4. A avaliação de áreas de solda reparadas e testadas novamente devem ser tabuladas em uma nova linha no formulário
de relatório. Se o formulário de relatório original for usado, Rn deve ser o prefixo do número de indicação. Se
formulários adicionais forem usados, o R número deve ser prefixo do número de relatório.
ANEXO M AWS D1.1/D1.1M:2010
354
Esta página esá intencionalmente em branco
AWS D1.1/D1.1M:2010
355
Anexo N (Informativo)
Formulários de Amostra de Soldagem
Esse anexo não é parte de D1.1/D1.1 M:2010, Código de Soldagem Estrutural-Aço, da AWS, mas está incluído apenas
para propósito de informação.
Esse anexo contém seis formulários que o Comitê de
Soldagem Estrutural aprovou para dados de registro de
qualificação WPS, qualificação de soldador,
qualificação de operador de soldagem e qualificação de
soldador ponteador requeridos por este código.
Também inclui formulários de relatório de laboratório
para registrar os resultados de NDT de soldas.
É recomendado que as informações de qualificação e
NDT requeridas por esse código sejam registradas
nesses formulários, ou formulários similares que
tenham sido preparados pelo usuário. Variações desses
formulários para adequação às necessidades do usuário
são permitidas.
N1. Comentário sobre o uso de
Formulário N-1 (Frente) e N-1
(Verso) de WPS
O Formulário N-1 pode ser usado para registrar
informações para uma WPS ou um PQR. O usuário
deveria indicar a aplicação selecionada nas caixas
apropriadas ou o usuário pode escolher deixar em
branco os cabeçalhos inapropriados.
WPS e PQR serão assinados pelo representante
autorizado do Fabricante ou Empreiteiro.
Para detalhes de junta na WPS, um esboço ou uma
referência ao detalhe de junta pré-qualificado aplicável
podem ser usados (por exemplo, B-U4a).
N2. Pré-qualificada
A WPS pode ser pré-qualificada em conformidade com
todas as provisões da Cláusula 3, caso em que o
documento de uma página Formulário N-1 é requerido.
Formulários de Exemplo
Exemplos de WPSs e um PQR concluídos foram
incluídos para propósito de informação. Os nomes são
fictícios e os dados de teste dados não são de nenhum
teste real e não devem ser usados. O Comitê acredita
que esses exemplos irão ajudar usuários do código a
produzir documentação aceitável.
N4. Qualificada por Teste
A WPS pode ser qualificada por teste em conformidade
com as provisões da Cláusula 4. Nesse caso, um PQR
de suporte é requerido em acréscimo à WPS. Para o
PQR, o Formulário N-1 (Frente) pode novamente ser
usado com uma alteração de cabeçalho apropriada.
Também, o Formulário N-1 (Verso) pode ser usado
para registrar os resultados de teste e a declaração de
certificação.
Para a WPS, declare as faixas permitidas qualificadas
por teste ou declare as tolerâncias apropriadas ou
variável essencial, (por exemplo, 250 amps ± 10%).
Para o PQR, os detalhes reais de junta e os valores de
variáveis essenciais usados no teste deveriam ser
registrados. Uma cópia do Relatório de Teste de Fábrica
para o material testado deveria ser anexada. Além disso,
Relatórios de Dados de Laboratório de Teste também
podem ser incluídos como informação de suporte.
A inclusão de itens não requeridos pelo código é
opcional; no entanto, eles podem ser úteis para
configurar o equipamento, ou entender os resultados de
teste.
ANEXO N AWS D1.1/D1.1M:2010
356
ESPECIFICAÇÃO DE PROCEDIMENTO DE SOLDAGEM (WPS) Sim 
PRÉ-QUALIFICADA __________ QUALIFICADA POR TESTE __________
ou REGISTROS DE PROCEDIMENTO DE QUALIFICAÇÃO (PQR) Sim 
Nome da Empresa __________________________________
Processo(s) de Soldagem __________________________________
PQR de Suporte Nº(s) __________________________________
PROJETO DE JUNTA USADO
Tipo:
Única  Solda Dupla 
Reforço. Sim  Não
Material de Reforço:
Abertura de Raiz _____ Dimensão de Face de Raiz _______
Ângulo de Chanfro. __________________ Raio (J–U) ____________
Goivagem por Trás: Sim Não  Método _____________________
METAIS BASE
Especificação de Material ____________________________
Tipo ou Grau ______________________________________
Espessura: Chanfro __________________ Filete ______________
Diâmetro (Cano)____________________________________________
METAIS DE ADIÇÃO
Especificação AWS________________________________________
Classificação AWS _________________________________________
PROTEÇÃO
Fluxo _________________ Gás ____________________________
Composição ______________________
Eletrodo-Fluxo (Classe)____Taxa de Fluxo ____________________
_________________________ Tamanho do Bocal de Gás _________
PRÉ-AQUECIMENTO
Temp. Pré-aquecimento, Mín. _______________________________
Temp. de Interpasse, Mín. __________ Máx. ______________
Identificação # __________________________________________
Revisão ________ Data __________ Por ______________
Autorizado por ____________________ Data ___________
Tipo—Manual  Semi-automático 
Mecanizado  Automático 
POSIÇÃO
Posição de Chanfro: ____________ Filete: ____________
Progressão Vertical: Para Cima  Para Baixo 
CARACTERÍSTICAS ELÉTRICAS
__________ _____________
Modo de Transferência (GMAW) Curto-Circuito 
Globular  Pulverização 
Corrente: AC  DCEP  DCEN  Pulsada 
Fonte de Energia: CC  CV 
Outros __________ ________________________________
Eletrodo de Tungstênio (GTAW)
Tamanho: ______________
Tipo: _____________
TÉCNICA
Passe estreito ou Escamas de Solda: __________________
Passe Múltiplo ou Único (por lado) _________________
Número de Eletrodos ______________________________
Espaçamento de Eletrodo Longitudinal ____________________
Lateral ________________________
Ângulo ________________________
Tubo de Contato para Distância de Trabalho ____________
Martelamento ____________________________________
Limpeza de Interpasse: _____________________________
TRATAMENTO TÉRMICO PÓS-SOLDA
Temp. ________________________________________________
Tempo ________________________________________________
PROCEDIMENTO DE SOLDAGEM
Passe ou
Solda
Camada(s) Processo
Metais de Adição Corrente
Volts
Velocidade de
Deslocamento Detalhes de Junta
Classe Diâmetro
Tipo &
Polaridade
Amps ou Arame
Velocidade de
Alimentação
Formulário N-1 (Frente)
AWS D1.1/D1.1M:2010 ANEXO N
357
ESPECIFICAÇÃO DE PROCEDIMENTO DE SOLDAGEM (WPS) Sim 
PRÉ-QUALIFICADA X QUALIFICADA POR TESTE __________
ou REGISTROS DE PROCEDIMENTO DE QUALIFICAÇÃO (PQR) Sim 
Nome da Empresa LECO
Processo(s) de Soldagem SAW
PQR de Suporte Nº(s) Pré/qualificado
PROJETO DE JUNTA USADO
Tipo: Topo
Única  Solda Dupla 
Reforço. Sim  Não
Material de Reforço: ASTM A36
Abertura de Raiz 5/8” Dimensão de Face de Raiz -
Ângulo de Chanfro. 20° Raio (J–U) -
Goivagem por Trás: Sim Não  Método -
METAIS BASE
Especificação de Material ASTM A36
Tipo ou Grau -
Espessura: Chanfro 1” Filete -
Diâmetro (Cano) -
METAIS DE ADIÇÃO
Especificação AWS A5.17
Classificação AWS EM12K
PROTEÇÃO
Fluxo 860 Gás -
Composição -
Eletrodo-Fluxo (Classe) Taxa de Fluxo -
F7A12-EM12K Tamanho do Bocal de Gás -
PRÉ-AQUECIMENTO
Temp. Pré-aquecimento, Mín. 150° F
Temp. de Interpasse, Mín. 150° F Máx. 350° F
Identificação # W2081
Revisão 2 Data 3-1-89 Por R. Jones
Autorizado por C.W. Haye Data
Tipo—Manual  Semi-automático 
Mecanizado  Automático 
POSIÇÃO
Posição de Chanfro: F Filete: -
Progressão Vertical: Para Cima  Para Baixo 
CARACTERÍSTICAS ELÉTRICAS
_______________________
Modo de Transferência (GMAW) Curto-Circuito 
Globular  Pulverização 
Corrente: AC  DCEP  DCEN  Pulsada 
Fonte de Energia: CC  CV 
Outros
Eletrodo de Tungstênio (GTAW)
Tamanho:
Tipo:
TÉCNICA
Passe estreito ou Escamas de Solda: Passe estreito
Passe Múltiplo ou Único (por lado) Passe Múltiplo
Número de Eletrodos 1
Espaçamento de Eletrodo Longitudinal -
Lateral -
Ângulo -
Tubo de Contato para Distância de Trabalho _1-1/4”_________
Martelamento Nenhum
Limpeza de Interpasse: Escória removida
TRATAMENTO TÉRMICO PÓS-SOLDA
Temp. N.D
Tempo -
PROCEDIMENTO DE SOLDAGEM
Passe ou
Solda
Camada(s) Processo
Metais de Adição Corrente
Volts
Velocidade de
Deslocamento Detalhes de Junta
Classe Diâmetro
Tipo &
Polaridade
Amps ou Arame
Velocidade de
Alimentação
1-n SAW EM12
K
5/32" DC+ 45 ipm
550 Amps
±10%
28 V
±7%
16 ipm
±15%
Formulário N-1 (Frente)
AWS D1.1/D1.1M:2010 ANEXO N
358
ESPECIFICAÇÃO DE PROCEDIMENTO DE SOLDAGEM (WPS) Sim 
PRÉ-QUALIFICADA QUALIFICADA POR TESTE __________
ou REGISTROS DE PROCEDIMENTO DE QUALIFICAÇÃO (PQR) Sim 
Nome da Empresa RED. Inc.
Processo(s) de Soldagem F. CAW
PQR de Suporte Nº(s) -
PROJETO DE JUNTA USADO
Tipo: Topo
Única  Solda Dupla 
Reforço. Sim  Não
Material de Reforço: ASTM A 131A
Abertura de Raiz 1/4” Dimensão de Face de Raiz -
Ângulo de Chanfro 35° Raio (J–U) -
Goivagem por Trás: Sim Não  Método -
METAIS BASE
Especificação de Material ASTM A131 A
Tipo ou Grau A
Espessura: Chanfro 1” Filete -
Diâmetro (Cano) -
METAIS DE ADIÇÃO
Especificação AWS A5.20
Classificação AWS E71T-1
PROTEÇÃO
Fluxo - Gás CO2
Composição 100% CO2
Eletrodo-Fluxo (Classe) Taxa de Fluxo 4SCFH
F7A12-EM12K Tamanho do Bocal de Gás #4
PRÉ-AQUECIMENTO
Temp. Pré-aquecimento, Mín. 75° (AMBIENTE)
Temp. de Interpasse, Mín. 75° F Máx. 350° F _______
Identificação # PQR 231
Revisão 1 Data 1-12-87 Por W. Lye
Autorizado por J. Jones. Data 18-1-88
Tipo—Manual  Semi-automático 
Mecanizado  Automático 
POSIÇÃO
Posição de Chanfro: F Filete: ______-______
Progressão Vertical: Para Cima  Para Baixo 
CARACTERÍSTICAS ELÉTRICAS
_____________________________
Modo de Transferência (GMAW) Curto-Circuito 
Globular  Pulverização 
Corrente: AC  DCEP  DCEN  Pulsada 
Fonte de Energia: CC  CV 
Outros __________ ________________________________
Eletrodo de Tungstênio (GTAW)
Tamanho: ______________
Tipo: _____________
TÉCNICA
Passe estreito ou Escamas de Solda: Passe estreito
Passe Múltiplo ou Único (por lado) Passe Múltiplo
Número de Eletrodos 1
Espaçamento de Eletrodo Longitudinal -
Lateral -
Ângulo -
Tubo de Contato para Distância de Trabalho 1-1/4”
Martelamento Nenhum
Limpeza de Interpasse: Escova de Aço
TRATAMENTO TÉRMICO PÓS-SOLDA
Temp. N.D
Tempo -
PROCEDIMENTO DE SOLDAGEM
Passe ou
Solda
Camada(s) Processo
Metais de Adição Corrente
Volts
Velocidade de
Deslocamento Detalhes de Junta
Classe Diâmetro
Tipo &
Polaridade
Amps ou Arame
Velocidade de
Alimentação
1
2-8
9-11
12-15
16
FCAW
"
"
"
"
E71T-
1
"
"
"
"
,045"
"
"
"
"
DC+
"
"
"
"
180
200
200
200
200
26
27
27
27
27
8
10
11
9
11
Formulário N-1 (Frente)
AWS D1.1/D1.1M:2010 ANEXO N
359
ESPECIFICAÇÃO DE PROCEDIMENTO DE SOLDAGEM (WPS) Sim 
PRÉ-QUALIFICADA QUALIFICADA POR TESTE _____X_____
ou REGISTROS DE PROCEDIMENTO DE QUALIFICAÇÃO (PQR) Sim 
Nome da Empresa RED. Inc.
Processo(s) de Soldagem F. CAW
PQR de Suporte Nº(s) PQR 231
PROJETO DE JUNTA USADO
Tipo: Topo
Única  Solda Dupla 
Reforço. Sim  Não
Material de Reforço: ASTM A 131A
Abertura de Raiz 1/4” Dimensão de Face de Raiz -
Ângulo de Chanfro. 35° Raio (J–U) -
Goivagem por Trás: Sim Não  Método -
METAIS BASE
Especificação de Material ASTM A 131
Tipo ou Grau A
Espessura: Chanfro 1” Filete -
Diâmetro (Cano) -
METAIS DE ADIÇÃO
Especificação AWS A5.20
Classificação AWS E71T-1
PROTEÇÃO
Fluxo - Gás CO2
Composição 100% CO2
Eletrodo-Fluxo (Classe) Taxa de Fluxo 45-55CFH
F7A12-EM12K Tamanho do Bocal de Gás #4
PRÉ-AQUECIMENTO
Temp. Pré-aquecimento, Mín. 60° (AMBIENTE)
Temp. de Interpasse, Mín. 60° F Máx. 350° F _______
Identificação # PQR 231
Revisão 1 Data 1-12-87 Por W. Lye
Autorizado por J. Jones. Data 18-1-88
Tipo—Manual  Semi-automático 
Mecanizado  Automático 
POSIÇÃO
Posição de Chanfro: 0.H Filete: ______-
Progressão Vertical: Para Cima  Para Baixo 
CARACTERÍSTICAS ELÉTRICAS
____________________________
Modo de Transferência (GMAW) Curto-Circuito 
Globular  Pulverização 
Corrente: AC  DCEP  DCEN  Pulsada 
Fonte de Energia: CC  CV 
Outros __________ ________________________________
Eletrodo de Tungstênio (GTAW)
Tamanho:
Tipo:
TÉCNICA
Passe estreito ou Escamas de Solda: Passe estreito
Passe Múltiplo ou Único (por lado) Passe Múltiplo
Número de Eletrodos 1
Espaçamento de Eletrodo Longitudinal
Lateral -
Ângulo -
Tubo de Contato para Distância de Trabalho 1/2-1”
Martelamento Nenhum
Limpeza de Interpasse: Escova de Aço
TRATAMENTO TÉRMICO PÓS-SOLDA
Temp. N.D
Tempo. N.D
PROCEDIMENTO DE SOLDAGEM
Passe ou
Solda
Camada(s) Processo
Metais de Adição Corrente
Volts
Velocidade de
Deslocamento Detalhes de Junta
Classe Diâmetro
Tipo &
Polaridade
Amps ou Arame
Velocidade de
Alimentação
Todos FCAW E71T-
1
,045" DC+ 180-220A 25-
26V
8-12
ipm
Formulário N-1 (Frente)
AWS D1.1/D1.1M:2010 ANEXO N
360
Registro de Qualificação de Procedimento (PQR) # __________
Resultados de Teste
TESTE DE TRAÇÃO
Espécime
Nº
Largura Espessura Área
Carga de Tração
de Ruptura, lb
Tensão de
Ruptura
da Unidade, psi
Caráter de Falha
e Local
TESTE DE FLEXÃO GUIADO
Espécime
Nº
Tipo de Flexão Resultado Observações
INSPEÇÃO VISUAL
Aparência ______________________________________
Mordedura ______________________________________
Porosidade de encanamento _______________________
Convexidade ____________________________________
Data de teste ____________________________________
Testemunhado por _______________________________
Outros Testes
Exame Radiográfico-de ultrassonografia
Relatório RT nº: _________ Resultado________________
Relatório UT nº: _________ Resultado________________
RESULTADOS DE TESTE DE SOLDA DE FILETE
Tamanho mínimo de passe múltiplo Tamanho máximo de
passe único
Análise Macrográfica Análise Macrográfica
1. __________ 3. __________ 1. __________ 3. ________
2. __________ 2. __________
Teste de tensão de metal depositado
Tensão de tração, psi ______________________________
Limite de escoamento/elasticidade, psi __________________
Alongamento em 2 in, % _____________________________
Teste de laboratório nº ______________________
Nome do Soldador ____________________________ Relógio nº Selo nº ________________
Testes conduzidos por ________________________ Laboratório ________________________________________
Número do teste___________________________________
Por __________________________________________
Nós, abaixo assinados, certificamos que as declarações nesse registro estão corretas e que as soldas foram preparadas e
testadas em conformidade com os requisitos da Cláusula 4, de D1.1/D1.1M, ( __________ ) Código de Soldagem
Estrutural—Aço, da AWS. (ano)
Assinado _____________________________________
Fabricante ou Empreiteiro
Por _______________________________________
Título _______________________________________
Data _______________________________________
Formulário N-1 (Verso)
AWS D1.1/D1.1M:2010 ANEXO N
361
Registro de Qualificação de Procedimento (PQR) # __________
Resultados de Teste
TESTE DE TRAÇÃO
Espécime
Nº
Largura Espessura Área
Carga de Tração
de Ruptura, lb
Tensão de
Ruptura
da Unidade, psi
Caráter de Falha
e Local
231-1 0,75'' 1,00'' 0,75'' 52 500 70 000 Dúctil
231-3 0,75'' 1,00'' 0,75'' 52 275 69 700 Dúctil
TESTE DE FLEXÃO GUIADO
Espécime
Nº
Tipo de Flexão Resultado Observações
231-2 Lado Passe
231-4 Lado Passe Pequena (<1/16") abertura aceitável
231-6 Lado Passe
231-5 Lado Passe
INSPEÇÃO VISUAL
Aparência aceitável
Mordedura aceitável
Porosidade de encanamento nenhuma
Convexidade nenhuma
Data de teste 3-12-02
Testemunhado por D. Davis
Outros Testes
Exame Radiográfico-de ultrassonografia
Relatório RT nº: D231 Resultado passou
Relatório UT nº: _________ Resultado________________
RESULTADOS DE TESTE DE SOLDA DE FILETE
Tamanho mínimo de passe múltiplo Tamanho máximo de
passe único
Análise Macrográfica Análise Macrográfica
1. __________ 3. __________ 1. __________ 3. ________
2. __________ 2. __________
Teste de tensão de metal depositado
Tensão de tração, psi 83,100
Limite de escoamento/elasticidade, psi 72,600
Alongamento em 2 in, % 28
Teste de laboratório nº PW 31
Nome do Soldador W.T. Williams Relógio nº 261 Selo nº ________________
Testes conduzidos por RED Inc. & ABC Testing Laboratório
Número do teste PQR 231
Por D. Miller
Nós, abaixo assinados, certificamos que as declarações nesse registro estão corretas e que as soldas foram preparadas e
testadas em conformidade com os requisitos da Cláusula 4, de D1.1/D1.1M, ( 2002 ) Código de Soldagem
Estrutural—Aço, da AWS. (ano)
Assinado RED. Inc.
Fabricante ou Empreiteiro
Por ___R. M. Boncrack __________________
Título Q.C. Mgr.
Data 15-12-2002
Formulário N-1 (Verso)
AWS D1.1/D1.1M:2010 ANEXO N
362
REGISTRO DE TESTE DE QUALIFICAÇÃO WPS PARA SOLDAGEM DE ELETROESCÓRIA E
ELETROGÁS
ESPECIFICAÇÃO DE PROCEDIMENTO
Especificação de material ________________________
Processo de soldagem ____________________________
Posição de soldagem _____________________________
Especificação de metal de adição ___________________
Classificação de metal de adição ____________________
Metal de adição _________________________________
Fluxo _________________________________________
Gás de proteção _____________ Taxa de fluxo ________
Ponto de orvalho do gás _________________________
Faixa de espessura que esse teste qualifica. _________
Passe único ou múltiplo __________________________
Arco único ou múltiplo ___________________________
Corrente de soldagem ____________________________
Temperatura de pré-aquecimento ___________________
Temperatura de pós-aquecimento ___________________
Nome do soldador _______________________________
Flexibilidade do tubo guia __________________________
Composição do tubo guia __________________________
Diâmetro do tubo guia ____________________________
Velocidade de subida vertical _______________________
Comprimento transversal __________________________
Velocidade transversal ____________________________
Contato ________________________________________
Tipo de sapata de modelagem ______________________
INSPEÇÃO VISUAL (Tabela 6.1, Limitações ciclicamente
carregadas)
Aparência ______________________________________
Mordedura______________________________________
Porosidade de encanamento _______________________
Data de teste ___________________________________
Testemunhado por ______________________________
RESULTADOS DE TESTE
Teste de tração de seção reduzida
Tensão de tração, psi
1. ______________________________________________
2. ______________________________________________
Teste de tensão de metal depositado
Tensão de tração, psi _____________________________
Limite de escoamento/elasticidade, psi ________________
Alongamento em 2 in, % ____________________________
Testes de flexão lateral
1. ____________________ 3. ___________________
2. ____________________ 4. ___________________
Exame Radiográfico-de ultrassonografia
Relatório RT nº ___________________________________
Relatório UT nº ___________________________________
Testes de impacto
Tipo de espécime ___________ Temp. de teste _________
Ft-lbs: 1. _______ 2. ________ 3. ________ 4. _________
5. ________ 6. _________ Médio ____________________
Alto _________________ Baixo _____________________
Teste de laboratório nº _____________________________
PROCEDIMENTO DE SOLDAGEM
Passe
Nº
Tamanho de
Eletrodo
Corrente de soldagem
Detalhe de Junta
Ampères Volts
Nós, abaixo assinados, certificamos que as declarações nesse registro estão corretas e que as soldas foram preparadas,
soldadas, e testadas em conformidade com os requisitos da Cláusula 4, de D1.1/D1.1M, ( _____ ) Código de Soldagem
Estrutural—Aço, da AWS. (ano)
Procedimento no. _______________________________ Fabricante ou Empreiteiro _______________________
Revisão no ____________________________________ Autorizado por
Data
Formulário N-3
AWS D1.1/D1.1M:2010 ANEXO N
363
REGISTRO DE TESTE DE QUALIFICAÇÃO DE SOLDADOR, OPERADOR DE SOLDAGEM OU
SOLDADOR PONTEADOR
Tipo de Soldador ________________________________________________
Nome _________________________________________________________ Identificação Nº ____________________
Especificação de Procedimento de Soldagem No____________ Rev.___________________ Data__________________
Valores Reais de Registro
Usados em Qualificação
Faixa de Qualificação
Variáveis
Processo/Tipo [Tabela 4.12, Item (1)]
Eletrodo (único ou múltiplo) [Tabela 4.12, Item (7)]
Corrente/Polaridade
Posição [Tabela 4.12, Item (4)]
Progressão de Solda [Tabela 4.12, Item (5)]
Reforço (SIM ou NÃO) [Tabela 4.12, Item (5)]
Material/Especificação para
Metal Base:
Espessura: (Placa)
Chanfro
Filete
Espessura: (Cano/tubo)
Chanfro
Filete
Diâmetro: (Cano)
Chanfro
Filete
Metal de Adição (Tabela 4.12)
Especificação Nº
Classe
F-Nº [Tabela 4.12, Item (2)]
Tipo de Gás/Fluxo (Tabela 4.12)
Outro
INSPEÇÃO VISUAL (4.9.1)
Aceitável SIM ou NÃO _____
Resultados de Teste de Flexão Guiada (4.31.5)
Tipo Resultado Tipo Resultado
Resultados de Teste de Filete (4.31.2 3 e 4.31.4.1)
Aparência Tamanho de Filete ___________________
Penetração de Raiz de Teste de Fratura _____________________ Análise Macrográfica ________________
(Descreve o local, natureza e tamanho de qualquer trinca ou ruptura do espécime.)
Inspecionado por ________________________________ Número do Teste _____________________________________
Organização ___________________________________ Data ___________________________________________
RESULTADOS DE TESTE RADIOGRÁFICO (4.31.3.2)
Identificação de Filme
Número
Resultados Observações Identificação de Filme
Número
Resultados Observações
Nós, abaixo assinados, certificamos que as declarações nesse registro estão corretas e que as soldas foram preparadas,
soldadas, e testadas em conformidade com os requisitos da Cláusula 4, de D1.1/D1.1M, ( _____ ) Código de Soldagem
Estrutural—Aço, da AWS. (ano)
Inspecionado por _____________________________________ Número do Teste ________________________________
Organização ________________________________________ Data ___________________________________________
(ano)
Fabricante ou Empreiteiro _______________________ Autorizado Por _________________________________________
Data ___________________________________________________
Formulário N-4
AWS D1.1/D1.1M:2010 ANEXO N
364
RELATÓRIO DE EXAME RADIOGRÁFICO DE SOLDAS
Projeto ___________________________________________________________________________________________
Requisitos de qualidade—seção nº _____________________________________________________________________
Relatado para _______________________________________________________________________________________
LOCAL DE SOLDA E ESBOÇO DE IDENTIFICAÇÃO
Técnica
Fonte ____________________________________
Filme a fonte _______________________________
Tempo de exposição ________________________
Telas _____________________________________
Tipo de filme _______________________________
(Descreve comprimento, largura e espessura de todas as juntas radiografadas)
Data Identificação de solda Área
Interpretação Reparos
Observações
Aceitaçã
o Rejeição
Aceitaçã
o Rejeição
Nós, abaixo assinados, certificamos que as declarações nesse registro estão corretas e que as soldas foram preparadas e
testadas em conformidade com os requisitos de D1.1/D1.1M, ( __________ ) Código de Soldagem Estrutural—Aço, da
AWS. (ano)
Técnico de Radiografia(s) _________________________ Fabricante ou Empreiteiro ____________________
Intérprete ______________________________________ Autorizado por _________________________
Data de teste ___________________________________ Data ________________________________________
Formulário N-7
AWS D1.1/D1.1M:2010 ANEXO N
365
RELATÓRIO DE EXAME MAGNÉTICO DE PARTÍCULAS DE SOLDAS
Projeto _________________________________________________________________________________________
Requisitos de qualidade—Seção Nº ____________________________________________________________________
Relatado para ______________________________________________________________________________________
LOCAL DE SOLDA E ESBOÇO DE IDENTIFICAÇÃO
Área Examinada Interpretação Reparos
Data Identificação de
solda
Todo Especificação Aceitação Rejeição Aceitação Rejeição Observações
PRÉ-EXAME
Preparação de Superfície: _____________________________________________________________________________
EQUIPAMENTO
Fabricação de Instrumento: _______________ Modelo: _____________ S. Nº: _____________________
MÉTODO DE INSPEÇÃO
 Seco  Molhado Visível  Fluorescente
Como a Mídia foi Aplicada: _________________________________
 Residual  Contínuo  Verdadeiro-Contínuo
 AC  DC  Meia-Onda
 Prods  Encaixe  Invólucro de Cabo Outro ______________
Direção de Campo:  Circular  Longitudinal
Resistência de Campo: _ ________________________________
(Voltas de ampère, densidade de campo, força magnetizante, número e duração de aplicação de força.)
PÓS EXAME
Técnica de Desmagnetização (se requerida): ______________________________________________________________
Limpeza (se necessária): Método de Marcação: _______________________________
Nós, abaixo assinados, certificamos que as declarações nesse registro estão corretas e que as soldas foram preparadas e
testadas em conformidade com os requisitos de D1.1/D1.1M, ( __________ ) Código de Soldagem Estrutural—Aço, da
AWS. (ano)
Inspetor _________________________________ Fabricante ou Empreiteiro ______________________________
Nível ___________________________________ Autorizado Por _______________________________________
Data de _____________________________ Data _____________________________
Formulário N-8
AWS D1.1/D1.1M:2010 ANEXO N
366
FORMULÁRIO DE DADOS DE TESTE DE QUALIFICAÇÃO DE APLICAÇÃO DE SOLDAGEM
DE PINO PELA SUBCLÁUSULA 7.6 Sim 
TESTE DE PRÉ-PRODUÇÃO PELA SUBCLÁUSULA 7.7.1. (WPS) Sim 
OU REGISTRO DE PROCEDIMENTO DE QUALIFICAÇÃO (PQR) Sim 
OU REGISTRO DE QUALIFICAÇÃO DE SOLDADOR (WQR) Sim 
Nome da empresa ________________________________________
Nome do Operador _______________________________________
Número do teste ________________________________________
Material de pino de solda ___________________________________
Tamanho de pino de solda e PN#/Fabricante ___________________
Material Base
Especificação ____________________________________________
Liga ou têmpera ___________________________________
Condição de superfície HR  CR 
Revestimento ____________________________________________
Método de limpeza ________________________________________
Medidor de cobertura ______________________________________
Forma de Material Base
Tubo Redondo Plano
Raio Interno Externo Interno do Ângulo
Espessura _______________________________________________
Grampo Fixador
Peça Nº/Fabricante ________________________________________
Descrição do grampo fixador________________________________
Dados de Equipamento
Configurações de Aplicação, Corrente e Configurações de Tempo
Fabricação __________________ Modelo ___________________
Pistola de pino: Fabricação ____________________________
Modelo____________
Tempo de solda (segundos) ________________________________
Corrente (amperagem)____________________________________
Polaridade: DCEN ____________________ DCEP_______________
Elevação ________________________________________________
Êmbolo (protrusão) ________________________________________
Tamanho de cabo de solda ______ Comprimento ____________
Número de retificações (peça lidera) ____________________
Esboço de Base de Pino/Detalhe de
Aplicação
Posição de Soldagem
Plana  Horizontal  Angular—graus a partir de normal  Suspensa 
Gás de Proteção
Gás(es) de Proteção/Composição __________________________
Taxa de fluxo _________________________________________
RESULTADOS DE TESTE DE SOLDA
Parafuso Nº Aceitação Visual Opção #1 Teste de
Flexão
Opção #2 Teste de
Tensão
Opção #3 Teste* de
Torque
1
2
3
4
6
7
8
9
10
*Observação: Teste de torque opcional apenas para fixação de encadeamento.
Testes mecânicos conduzidos por ______________________________ Data ________________________
(Empresa)
Nós, abaixo assinados, certificamos que as declarações nesse registro estão corretas e que as soldas foram preparadas e
testadas em conformidade com os requisitos da Cláusula 7 de D1.1/D1.1M, ( __________ ) Código de Soldagem Estrutural—
Aço, da AWS. (ano)
Assinado por ___________________________ Título _________________ Data ___________________
(Empreiteiro/Aplicador/Outro)
Empresa _____________________________________
Formulário N-9
AWS D1.1/D1.1M:2010
367
Anexo O
Diretrizes para a Preparação de Questões Técnicas para
o Comitê de Soldagem Estrutural
Esse anexo não é parte de D1.1/D1.1 M:2010, Código de Soldagem Estrutural-Aço, da AWS, mas está incluído apenas
para propósito de informação.
O1. Introdução
A diretoria da Sociedade Americana de Soldagem
(AWS) adotou uma política em que todas as
interpretações oficiais de padrões da AWS são tratadas
de uma maneira formal. Sob essa política, todas as
interpretações são feitas pelo comitê que é responsável
pelo padrão. Comunicação oficial a respeito dessa
interpretação é dirigida através dos membros da equipe
AWS que trabalham no comitê. A política requer que
todas os pedidos de interpretação sejam submetidos por
escrito. Tais pedidos serão respondidos tão rápido
quanto possível, mas devido à complexidade do
trabalho e os procedimentos que precisam ser seguidos,
algumas interpretações podem tomar um tempo
considerável.
O2. Procedimento
Todas as questões devem ser dirigidas a:
Managing Director
Technical Services Division
American Welding Society
550 N.W. LeJeune Road
Miami, FL 33126, EUA
Todas as inquirições devem conter o nome, endereço e
afiliação do inquiridor, e devem fornecer informações
suficientes ao comitê para entender o ponto de
concernência na inquirição. Quando o ponto não é
claramente definido, a inquirição será devolvida para
esclarecimento. Para tratamento mais eficiente, todas as
questões deveriam ser datilografadas e estar no formato
descrito abaixo.
02.1 Âmbito. Cada inquirição deve tratar de uma única
provisão do código, a menos que o ponto da inquirição
envolva duas ou mais provisões interrelacionadas. A
provisão deve ser identificada no âmbito da inquirição
assim como a edição do código que contém a provisão
da qual o inquiridor está tratando.
02.2 Propósito da Inquirição. O propósito da
inquirição deve ser colocado nessa parte da inquirição.
O propósito pode ser obter uma interpretação de um
requisito do código, ou requisitar a revisão de uma
provisão particular do código.
02.3 Conteúdo da Inquirição. A inquirição deveria ser
concisa, porém completa, para permitir que o comitê
compreenda rápida e completamente o ponto da
inquirição. Esboços deveriam ser usados quando
apropriado e todos os parágrafos, figuras e tabelas (ou o
Anexo), que têm ligação com a inquirição devem ser
citados. Se o ponto da inquirição é obter uma revisão do
código, a inquirição precisa fornecer justificativa
técnica para essa revisão.
02.4 Resposta Proposta. O inquiridor deveria, como
resposta proposta, estabelecer uma interpretação da
provisão que é o ponto da inquirição, ou os termos para
uma revisão proposta, se é isso que o inquiridor busca.
O3. Interpretação de Provisões do
Código
Interpretações de provisões do código são feitas pelo
Comitê de Soldagem Estrutural. O secretário do comitê
transmite todas as inquirições para a direção do
subcomitê particular que tem uma jurisdição sobre a
parte do código tratada pela inquirição. O subcomitê
revisa a inquirição e a resposta proposta para determinar
qual deveria ser a resposta à inquirição. Em seguida ao
desenvolvimento que o subcomitê dá à resposta, a
inquirição e a resposta são apresentadas a todo o
AWS D1.1/D1.1M:2010 ANEXO O
368
Comitê de Soldagem Estrutural para revisão e
aprovação. Após aprovação pelo comitê, a interpretação
é uma interpretação oficial da Sociedade, e o secretário
transmite a resposta ao inquiridor e ao Welding Journal
para publicação.
O4. Publicação de Interpretações
Todas as interpretações oficiais devem aparecer no
Welding Journal e serão postadas no website da AWS.
O5. Inquirições por Telefone
Inquirições por telefone ao Escritório da AWS a
respeito do Código de Soldagem Estrutural deveriam
ser limitadas a questões de natureza geral ou a assuntos
diretamente relacionados com o uso desse código. A
política da Diretoria da AWS requer que todos os
membros da equipe da AWS respondam a pedidos
telefônicos Head- quarters staff cannot provide
consulting services. How- ever, the staff can refer a
caller to any of those consultants whose names are on
file at AWS Headquarters.
O6. Comitê de Soldagem
Estrutural
A atividades do Comitê de Soldagem Estrutural a
respeito de interpretações são estritamente limitadas às
interpretações de provisões do código ou à conideração
de revisões a provisões existentes com base em novos
dados ou tecnologia. Nem a equipe da AWS nem os
comitês estão em posição de oferecer servições de
interpretação ou consultoria sobre: (1) problemas
específicos de engenharia ou (2) requisitos do código
aplicados a fabricações fora do âmbito do código ou
pontos não especificamente abordados pelo código. Em
tais casos, o inquiridor deveria buscar assistência de um
engenheiro competente com experiência no campode
interesse particular.
ANEXO P AWS D1.1/D1.1M:2010
369
Anexo P (Informativo)
Ângulo Diedro Local
Esse anexo não é parte de Dl.l/D1.1M:2010, Código Soldagem Estrutural - Aço, mas foi incluído apenas para
propósitos informativos.
ANEXO P AWS D1.1/D1.1M:2010
370
ANEXO P AWS D1.1/D1.1M:2010
371
ANEXO P AWS D1.1/D1.1M:2010
372
ANEXO P AWS D1.1/D1.1M:2010
373
AWS D1.1/D1.1M:2010 ANEXO R
374
Esta página está intencionalmente em branco
AWS D1.1/D1.1M:2010
375
Anexo Q (Informativo)
Conteúdos de WPS Pré-qualificado
Este anexo não é parte da AWS Dl.l/D1.1M:2010, Código de Soldagem Estrutural - Aço, mas é incluído apenas com
propósitos informativos.
Soldagem pré-qualificada requer uma WPS por escrito referindo-se às subcláusulas do código a seguir conforme aplicável
a ligações soldadas de interesse. Além dos requisitos para uma WPS por escrito, esse código impõe muitos outros
requisitos e limitações para soldagem pré-qualificada. A organização usando soldagem pré-qualificada deve estar em
confomidade com todos os requisitos relevantes.
A especificação da WPS pode atender as necessidades dos usuários. Itens tais como tolerâncias de montagem podem ser
consultadas.
1.2 Limitações 5.2.2 Metal Base para Reforço, Espaçadores e Guia
de Solda
2.4.1.4 Tamanho Efetivo de Soldas em Chanfro
Curvado
5.3.1.2 Adequação de Classificação
2.4.2.7 Soldas de Filete de Reforço 5.3.2 Eletrodos SMAW
2.4.4.2 Extremidades de Ranhuras 5.3.3 Eletrodos e Fluxos SAW
2.4.3 Juntas Oblíquas em T 5.3.4 Eletrodos GMAW/FCAW
3.2.1 Processos Pré-qualificados 5.5 Variáveis WPS
3.3 Combinações de Metal Base / Metal de Adição 5.7 Controle de Aporte de Calor para Aços
Resfriados e Temperados.
3.5 Requisitos de Temperaturas Mínimas de Pré-
aquecimento e Interpasse
5.10 Reforço
3.6 3.7 Limitação de Variáveis de WPS 5.14 Tamanhos Mínimos de Solda de Filete
3.7 Requisitos Gerais de WPS 5.15 Preparação de Metal Base
3.9.3 Juntas Oblíquas em T 5.22.1.1 Superfície de Contato
3.10 Requisitos para Soldas de Tampão (Soldas Plug
e Slot)
5.25 Técnica para Soldas de Tampão (Plug e Slot)
3.12 Requisitos de PJP 5.27 Martelamento
3.13 Requisitos de Solda em Chanfro com CJP 5.30.1 Limpeza Durante o Processo
Tabela
3.8
Variáveis de WPSs Pré-qualificadas 7.5.5 Opção de solda de filete de FCAW, GMAW,
SMAW
7.7.5 Reparo da área de remoção
AWS D1.1/D1.1M:2010
376
Esta página esá intencionalmente em branco
AWS D1.1/D1.1M:2010
377
Anexo R (Informativo)
Práticas Seguras
Este anexo não é parte da AWS Dl.l/D1.1M:2010, Código de Soldagem Estrutural - Aço, mas é incluído apenas com
propósitos informativos.
Este anexo cobre muitos dos elementos básicos de segurança geral dos processos de solda a arco. Ele inclui muitos, mas
não todos, aspectos de segurança da soldagem estrutural. Os riscos que serão encontrados e as práticas que irão minimizar
ferimentos pessoais e estragos materiais são revistos aqui.
Rl. Riscos Elétricos
Choque elétrico pode matar. No entanto, pode ser
evitado. Partes elétricas ligadas não devem ser tocadas.
Leia e entenda as instruções do fabricante e as práticas
de segurança recomendadas. Instalação defeituosa,
aterramento impróprio e operação e manutenção
incorretas de equipamentos elétricos são todos fontes de
perigo.
Todo equipamento elétrico e peça de trabalho devem
ser aterrados. Uma conexão separada é requerida para
aterrar a peça de trabalho. O neutro de trabalho não
deve ser confundido com a conexão de aterramento.
Para prevenir choque, a área de trabalho, o equipamento
e as roupas devem ser mantidos secos todo o tempo.
Luvas secas e sapatos com sola de borracha devem ser
usados. O soldador deve ficar num tablado seco ou
plataforma isolada.
Cabos e conectores devem ser mantidos em boas
condições. Cabos gastos, estragados ou sem isolamento
não sevem ser usados. Em caso de choque elétrico, a
força deve ser desligada imediatamente. Se o socorrista
tiver que afastar a vítima de um contato ativo, deve usar
materiais não-condutores. Deve-se chamar um médico e
a CPR (recuperação cardio-pulmonar) deve continuar
até que a respiração seja restaurada, ou até a chegada do
médico. Veja Referências 8, 7, e 10.
R2. Fumaças e Gases
Muitas soldagens, cortes e processos associados
produzem fumaças e gases que podem ser danosos à
saúde.
Fumaças e partículas sólidas se originam dos materiais
consumidos na soldagem, da base metálica, e quaisquer
coberturas presentes na base metálica. Gases são
produzidos durante o processo de soldagem pelos
efeitos dos processos de radiação no ambiente ao redor.
Todos os associados com operações de soldagem
devem adequar-se aos efeitos dessas fumaças e gases.
Os possíveis efeitos de superexposição a fumaças e
gases vão da irritação dos olhos, pele e sistema
respiratório a complicações mais severas. Efeitos
podem ocorrer imediata ou posteriormente. Fumaças
podem causar sintomas tais como náusea, dores de
cabeça, tonturas e febre de fumaça de metal.
Ventilação suficiente, escapamento no arco, ou ambos,
devem ser usados para manter fumaças e gases longe
das zonas de respiração e área de trabalho em geral.
Para informações mais detalhadas sobre fumaças e
gases produzidos pelos vários processos de soldagem,
veja Referências 1, 4, e 11.
R3. Ruído
Ruído excessivo é um conhecido risco à saúde.
Exposição a ruído excessivo pode levar à perda de
audição. Esta perda de audição pode ser total ou parcial,
temporária ou permanente. Ruído excessivo afeta
adversamente a capacidade de audição. Além disso, há
indicações de que o ruído excessivo afeta outras
funções corporais e de comportamento.
Aparelhos de proteção pessoal tais como abafadores
auriculares e tampões auriculares devem ser
empregados. Geralmente, estes aparelhos apenas são
aceitos quando os controles de engenharia não são
totalmente eficazes. Ver Referências 1, 5, e 11.
AWS D1.1/D1.1M:2010 ANEXO R
378
R4. Proteção contra queimaduras
Metal derretido, fagulhas, escória e superfícies quentes
são produzidos pelos processos de soldagem, corte e
afins. Estes podem causar queimaduras se não forem
tomadas medidas de precaução.
Os operários devem usar roupa protetora de material
resistente a fogo. Bainhas de calças ou roupas com
bolsos abertos ou outros lugares na roupa que possam
pegar e reter metal derretido ou fagulhas não devem ser
usados. Botas de cano alto ou perneiras de couro e luvas
resistentes ao fogo devem ser usados. As pernas das
calças devem ser usadas por fora dos canos altos das
botas. Capacetes ou escudos manuais que providenciem
proteção para face, pescoço e orelhas devem ser usados,
bem como uma cobertura de cabeça que a proteja.
As roupas devem ser mantidas livres de graxa e óleo.
Materiais combustíveis não devem ser levados nos
bolsos. Se qualquer substância combustível for
derramada sobre a roupa, esta deve ser trocada por
roupa resistente a fogo limpa antes de trabalhar com
arco aberto ou fogo.
Proteção ocular apropriada deve ser usada todo tempo.
Óculos de proteção ou equivalentes devem ser usados
para fornecer maior proteção ocular.
Luvas isoladas devem ser usadas todo tempo quando
em contato com itens quentes ou quando lidando com
equipamento elétrico.
Para informações mais detalhadas sobre proteção
pessoal, as Referências 2, 3, 8, e 11 devem ser
consultadas.
R5. Prevenção contra fogo
Metal derretido, fagulhas, escória e superfícies quentes
são produzidas por soldagens, cortes e processos afins.
Estes podem causar fogo ou explosões se medidas de
precaução não forem tomadas.
Explosões ocorreram quando soldagens e cortes foram
executados em espaços contendo gases inflamáveis,
vapores, líquidos e poeira. Todo material combustível
deve ser removido da área de trabalho. Quando
possível, mover a área de trabalho para bem longe de
materiais combustíveis. Se nenhuma dessas ações é
possível, combustíveis devem ser protegidos com uma
cobertura de material resistente a fogo. Todos os
materiais combustíveis devem ser removidos ou
protegidos num raio de 35 pés [11 m] em volta da área
de trabalho.
Soldagem e corte não devem ser feitos em atmosferas
contendo gases perigosamente reativos ou inflamáveis,
vapores, líquidos e poeira. Não se deve aplicar calor
num recipiente que conteve substância desconhecida ou
materiais combustíveis cujo conteúdo, quando
aquecido, pode produzir vapores combustíveis ou
explosivos. Ventilação adequada deve ser
providenciada nas áreas de trabalho para prevenir
acúmulo de gases combustíveis, vapores ou poeira.
Recipientes devem estar limpos e purgados antes de se
aplicar calor.
Para informação mais detalhada sobre riscos de fogo
decorrentes de operações de soldagem e corte, veja
Referências 6, 8, 9, e 11.
R6. Radiação
Soldagem, corte e operações afins podem produzir
energia radiante (radiação) danosa à saúde. Todos
devem se familiarizar com os efeitos dessa energia
radiante.
Energia radiante pode ser ionizante (tal como raios-X)
ou não-ionizante (tal como ultravioleta, luz visível ou
infravermelho). Radiação pode produzir uma variedade
de efeitos tais como queimadura da pele ou dano aos
olhos, se ocorrer exposição excessiva.
Alguns processos como soldagem por resistência e
soldagem de pressão a frio usualmente produzem
quantidades negligíveis de energia radiante. No entanto,
a maioria das soldagens a arco e processos de corte
(exceto arco submerso quando usado apropriadamente),
soldagem a laser e soldagem com maçarico, corte ou
brasagem podem produzir quantidades de radiação não-
ionizante tais que medidas de precaução sejam
necessárias.
Proteção contra efeitos de radiação possivelmente
danosos inclui os seguintes:
(1) Arcos de solda não devem ser observados
exceto através de placas de filtragem para soldas (ver
Referência 2). Cortinas se soldagem transparentes não
devem ser tomadas por placas de filtragem para soldas,
e sim como proteção de transeuntes contra exposição
incidental.
(2) Pele exposta deve ser protegida com luvas
adequadas e roupas específicas (ver Referência 8).
(3) O transeunte casual de operações de soldagem
deve ser protegido por telas, cortinas ou distância
adequada nos corredores e passagens, etc...
(4) Óculos de segurança com proteção lateral
ultravioleta mostraram alguma proteção benéfica contra
radiação ultravioleta produzida por arcos de solda.
ANEXO R AWS D1.1/D1.1M:2010
379
Referências Citadas
(1) American Conference of Governmental Industry
Hygienists (ACGIH). Threshold limit values for chemi-
cal substances and physical agents in the workroom en-
vironment. Cincinnati, Ohio: American Conference of
Governmental Industry Hygienists (ACGIH).
(2) American National Standards Institute.
Practice for occupational and educational eye and face
protection, ANSI Z87.1. New York: American National
Standards Institute.
(3) American National Standards Institute. Personal
Protection-Protective Footwear, ANSI Z41.1. New
York: American National Standards Institute.
(4) American Welding Society. Fumes and gases in
the welding environment, AWS report. Miami, Florida:
American Welding Society.
(5) American Welding Society. Method for sound
level measurement of manual arc welding and cutting
processes, AWS F6.1. Miami, Florida. American
Welding Society.
(6) American Welding Society. Recommended safe
practices for the preparation for welding and cutting
containers and piping, AWS F4.1. Miami, Florida:
American Welding Society.
(7) American Welding Society. Safe Practices.
(Reprint from Welding Handbook, Volume 1, Ninth
Edition) Miami, Florida: American Welding Society.
(8) American Welding Society. Safety in
welding,cutting, and allied processes. ANSI Z49.1.
Miami, Florida: American Welding Society.
(9) National Fire Protection Association. Fire
prevention in use of cutting and welding processes,
NFPA Standard 51B. Quincy, Massachusetts: National
Fire Protection Association.
(10) National electrical code. NFPA No. 70.
Quincy, Massachusetts: National Fire Protection
Association.
(11) Occupational Safety and Health
Administration. Code of Federal Regulations, Title 29
Subtitle B, Chapter XVII, Part 1910; Occupational
Safety and Health Standards. Washington, DC: U.S.
Government Printing Office.
AWS D1.1/D1.1M:2010
380
Página intencionalmente em branco
AWS D1.1/D1.1M:2010
381
Anexo S (Informativo)
Exame UT de Soldas por Teste de Ultrassografia -
Técnicas Alternativas
Este anexo não é parte do AWS Dl.l/D1.1M:2010, Código de Soldagem Estrutural-Aço, mas é incluído apenas com
propósitos informativos.
Sl. Geral
O propósito deste anexo é descrever técnicas
alternativas para teste UT de soldas. As técnicas
descritas são métodos comprovados de uso corrente em
outras aplicações, mas não detalhadas no código. As
técnicas alternativas apresentadas requerem proce-
dimentos qualificados, por escrito, qualificações
especiais para operador de teste UT, e métodos de
calibragem especiais necessários para se obter a
requerida precisão em medição de descontinuidade. O
uso deste anexo e os processos resultantes desen-
volvidos, incluindo os critérios aplicáveis de aceitação,
estão sujeitos à aprovação pelo Engenheiro.
Este anexo não é obrigatório a não ser que seja
especificado nos documentos contratuais. Quando assim
especificado, no entanto, todos requerimentos nele
contidos (se aplicáveis) devem ser considerados
obrigatórios, salvo se especificamente modificados nos
documentos contratuais.
Requerimentos aplicáveis do código em relação à
instrumentação e qualificação do operador, exceto as
aqui emendadas, podem ser usadas para suplementar
este anexo. No entanto, não é intencional que estas
técnicas sejam usadas para suplementar os requisitos
existentes na Cláusula 6 do código pois os
procedimentos e as técnicas lá especificados são
completos e representam uma aproximação diferente
para os testes UT de soldas.
Parte A
Procedimentos Básicos para UT
S2. Introdução
Os procedimentos básicos em UT, instrumentação e
requisitos do operador contidos nesta Parte A são
necessários para assegurar exatidão máxima na
avaliação de descontinuidade e medição. Os métodos
aqui descritos não são novos. Eles têm sido usados por
outras indústrias, incluindo a construção naval e de
construção de estruturas de plataformas marítimas nos
últimos 25 anos. Apesar de não terem sido proibidos,
não foram organizados e especificamente
disponibilizados para uso nos documentos AWS.
Alguns dos métodos incluídos nesta seção também
estão incluídos nas API RP 2X do American Petroleum
Institute, Recommended Practices for Ultrasonic
Examination of Offshore Structural Fabrication and
Guidelines for Qualification of Ultrasonic Technicians.
Informação adicional e útil pode ser obtida por
referência. Para maior controle em medição de
descontinuidade, enfatizou-se o processo que será
escrito e qualificado; requisitos especiais do técnico em
UT; e requisitos de instrumentação e calibragem de UT.
A AWS reconhece as limitações e inconsistências
inerentes ao exame por UT para caracterização e
medição de descontinuidades. A acuidade obtida tem
que ser provada pelo técnico em UT usando os
procedimentos e equipamentos aplicáveis.
Os resultados no procedimento de qualificação devem
ser fornecidos ao Engenheiro. A AWS não contesta a
acuidade possível pelo uso dos métodos aqui contidos.
ANEXO S AWS D1.1/D1.1M:2010
382
S3. Procedimentos para UT
Todos os UTs deverão ser executados de acordo com os
procedimentos escritos que conterão um mínimo das
seguintes informações a respeito dos métodos e técnicas
de exame dos UTs:
(1) Os tipos de configurações das juntas de soldas a
ser examinadas
(2) Critérios de aceitação dos tipos de juntas de
soldas a ser examinadas (critérios adicionais quando os
critérios da Cláusula 6, Parte C não são invocados pelo
Engenheiro)
(3) Tipos de equipamento para UT (fabricante,
número do modelo, número de série)
(4) Tipo de transdutor, incluindo frequência,
tamanho, forma, ângulo e tipo de cunha se forem
diferentes de 6.22.6 ou 6.22.7
(5) Preparação da superfície de sondagem e
requisitos de acoplamento
(6) Tipo de bloco(s) de teste de calibragem com os
refletores de referência apropriados
(7) Método de calibragem e intervalo de calibragem
(8) Método de exame para laminações prévias à
avaliação da solda se o método for deferente de 6.26.5
(9) Marcação índice da raiz de soldagem e outros
métodos preliminares de marcação de soldagem
(10) Padrões de varredura e requisitos de
sensibilidade
(11) Métodos para determinação de altura,
comprimento e nível de amplitude da descontinuidade
(12) Métodos de correção de transferência para
rugosidade de superfície, cobertura de superfície e
curvatura da parte. se aplicável
(13) Método de verificação de exatidão do exame
completado. Esta verificação será por reteste UT por
outros (auditores), outros métodos NDE, espécime de
análise macrográfica, goivagem ou outras técnicas
visuais a ser aprovadas pelo Engenheiro
(14) Requisitos de documentação para exames,
incluindo qualquer verificação executada
(15) Requisitos de retenção de Documentação. O
procedimento escrito será qualificado por teste de
soldas-maquete que representam as soldagens de
produção a ser examinada. As soldas-maquete serão
seccionadas, devidamente examinadas, e documentadas
para provar execução satisfatória do procedimento. O
procedimento e todos os dados qualificatórios devem
ser aprovados por um indivíduo que tenha certificado
Nível III em UT por teste em conformidade com ASNT
SNT-TC-1A e que tenha posterior qualificação por
experiência em exame de tipos específicos de juntas de
soldagem a ser examinadas.
S4. Operador e Equipamento de
UT
Complementando os requeridos em 6.14.6, 6.21, e
6.27.2, o operador de UT deve demonstrar habilidade
no uso do procedimento escrito, incluindo todas as
técnicas especiais requeridas e, quando altura e
profundidade de descontinuidade forem requeridas,
deverá estabelecer habilidade e precisão na
demonstração dessas dimensões.
O equipamento de UT deve alcançar o requerido por
6.22 e conforme requerido neste anexo. Equipamento
alternativo que utiliza computação, sistemas de
imagens, varredura mecanizada e equipamentos de
gravação podem ser usados, quando aprovados pelo
Engenheiro. Transdutores com frequência até to 6 MHz,
com tamanhos até 1/4 pol [6 mm] e de qualquer formato
podem ser usados, desde que estejam incluídos no
procedimento e propriamente qualificados.
S5. Padrão de Referência
O refletor padrão deve ser um furo lateral de 1,5 mm de
diâmetro ou equivalente. O refletor pode ser colocado
em um bloco de calibragem de qualquer formato,
maquete de soldagem ou peça de produção real a
critério do usuário. Orientação e tolerância para
colocação do refletor são mostradas na Figura S.l. Um
bloco de calibragem recomendado é mostrado na Figura
S.2. Possíveis usos alternativos do refletor são
mostrados na Figura S.3. Quando colocado em
maquetes de soldagem e secções de ligação soldada de
produção, o refletor deve estar em posição tal que seja
difícil direcionar feixes de som, assegurando assim
detecção de descontinuidades em todas as áreas de
interesse.
S6. Métodos de Calibragem
Os métodos de calibragem aqui descritos são
considerados aceitáveis devem ser usados para cumprir
estes procedimentos de UT alternativos. O código
reconhece que outros métodos de calibragem podem ser
preferidos pelo usuário individual. Se forem usados
outros métodos, estes devem produzir resultados que se
mostrem no mínimo iguais aos aqui recomendados. O
refletor padrão descrito em S5 deve ser considerado o
refletor padrão para estes e todos os métodos que
venham a ser usados.
S6.1 Sensibilidade Padrão.
Sensibilidade padrão deve
consistir da soma do seguinte:
(1) Sensibilidade básica. A indicação
maximizada do refletor padrão, mais,
(2) Correção da Amplitude de Distância.
Determinada por indicações de múltiplos refletores
padrão a profundidades representando o mínimo,
intermediário e máximo a ser examinado, mais,
(3) Correção de Transferência. Ajuste ao tipo de
material, forma e condições da superfície de varredura
tais como descritos abaixo:
ANEXO S AWS D1.1/D1.1M:2010
383
Para padronização de sensibilidade precisa, deve-se
realizar correção de transferência. Isto assegurará que as
diferenças em propriedades acústicas, varredura de
superfícies formato da peça entre o padrão de
calibragem e o bloco de calibragem sejam utilizados
quando executar a calibragem de sensibilidade padrão.
Valores de correção de transferência devem ser
determinados inicialmente antes do exame e quando o
tipo do material, forma, espessura e superfície de
varredura variem de modo a ser esperada diferença que
exceda ± 25% dos valores esperados. Os valores de
correção de transferência devem ser determinados como
mostrado na Figura S .4.
S6.1.1 Sensibilidade de Varredura. Sensibilidade
de varredura deve ser a sensibilidade padrão +
aproximadamente 6-12 dB ou como requerido para
verificar a penetração sonora pelas indicações dos
reflexos superficiais. A avaliação de execução deve ser
praticada com referência à sensibilidade padrão exceto
quando a sensibilidade padrão não é requerida s maior
ou menor sensibilidade for mais apropriada para
determinação do tamanho máximo de descontinuidade
(altura ou largura).
S6.2 Onda de Compressão
S6.2.1 Profundidade (Varredura Horizontal).
Indicações provenientes de reflexões múltiplas obtidas
da espessura do padrão de calibragem ou da área
medida de uma maquete ou soldagem de produção
devem ser usadas como mostrado na Figura S.5. A
exatidão da calibragem deve estar entre ±5% da
espessura real para exame do metal de base para
laminações e ± 2% para determinar tamanho de
descontinuidade (altura) e localização.
S6.2.2 Calibragem de Sensibilidade (Padrão). A
unidade de busca deve ser colocada sobre os refletores
padrão num mínimo de 3 profundidades para assegurar
cobertura de toda espessura a ser examinada em
conformidade com a Figura S.6. Os valores em dB
obtidos das indicações maximizadas de cada refletor
devem ser anotados. Uma curva de amplitude de
distância (DAC) deve ser estabelecida ou métodos
eletrônicos usados para saber a posição das indicações
de demonstração que representam o refletor padrão nas
várias espessuras a serem examinadas.
S6.3 Onda de Cisalhamento
S6.3.1 Profundidade (Varredura Horizontal).
Indicações dos refletores padrão selecionados devem
ser usados para cobrir profundidade máxima a serem
usadas durante exame conforme Figura S.7. A exatidão
estar entre ± 1% para facilitar a medição de altura de
descontinuidade mais acurada. A técnica de retardo
deve ser usada para descontinuidades com profundidade
maior do que aproximadamente 1,5 pol para maximizar
a precisão da leitura de profundidade de
descontinuidade (e altura de descontinuidade) mais
precisa.
S6.3.2 Sensibilidade (Padrão). Refletores padrão
localizados em profundidades mínima, intermediária e
máxima sob a superfície a ser usada para exame devem
ser usados em conformidade com a Figura S.7. As
indicações devem ser maximizadas e a DAC
estabelecida ou métodos eletrônicos usados para
mostrar indicações que representem o reflector padrão
nas várias profundidades selecionadas. A DAC deve ser
ajustada, baseada nos resultados da correção de
transferência.
Os métodos de calibragem de sensibilidade aqui
descritos não são essenciais quando o tamanho real da
descontinuidade (altura e comprimento) é requerida.
Neste caso, somente é necessário manter sensibilidade
suficiente através da parte sendo examinada de modo a
que todas as descontinuidades sejam encontradas e
apropriadamente avaliadas.
S7. Varredura
A varredura será como descrita em 6.32 e 6.27.7.
Complementando, para aplicações não cobertas pelas
referências do código acima, os métodos da Figura S.8
devem ser usados como aplicáveis.
S8. Métodos de Caracterização de
Descontinuidade de Soldagem
S8.1 Descontinuidades devem ser caracterizadas como
a seguir:
(1) Esféricas (poros individuais e porosidade
largamente espaçada, escória não alongada)
(2) Cilíndricas (escória alongada, poros de
porosidade alinhada, esferas ocas)
(3) Planas (fusão incompleta, penetração de junta
inadequada, trincas)
S8.2 Os seguintes métodos devem ser usados para
determinar as características básicas das
descontinuidades:
S8.2.1 Esféricas. O som é refletido igualmente em
todas as direções. As indicações permanecem
basicamente inalteradas enquanto a unidade de busca é
movida ao redor da descontinuidade esférica como
mostrado na Figura S .9.
S8.2.2 Cilíndricas. O som se reflete igualmente em
uma direção mas muda em outras direções. As
indicações permanecem basicamente inalteradas
enquanto a unidade de busca é movida em uma direção
mas é drasticamente mudada quando movida em outras
direções como mostrado na Figura S.10.
S8.2.3 Planas. O som se reflete no seu máximo apenas
num único ângulo de incidência com um plano. As
indicações mudam com qualquer movimento angular da
unidade de busca como mostrado na Figura S .11.
Indicações de trincas tipicamente têm picos múltiplos
como resultado das muitas facetas usualmente
presentes.
S9. Métodos de Medição e
Localização de Descontinui-
dades de Soldagem
S9.1 Calibragem. A calibragem deve ser baseada na
profundidade da superfície em conformidade com S6.
As descontinuidades podem ser dimensionadas com o
mais alto nível de precisão usando os métodos descritos
nesta secção, no entanto, o usuário deve se lembrar que
ANEXO S AWS D1.1/D1.1M:2010
384
UT, como qualquer método NDT, fornece dimensões de
descontinuidade relativas. A orientação e formato da
descontinuidade, unida com as limitações do método
NDT podem resultar em variações significativas entre
as dimensões relativas e reais.
S9.2 Altura. A altura da descontinuidade (dimensão
profundidade) deve ser determinada usando os
seguintes métodos:
S9.2.1 A altura de indicação deve ser maximizada
movendo-se a unidade de busca para frente e para trás
da descontinuidade conforme A da Figura S.12. A
altura de indicação deve ser ajustada num valor
conhecido (isto é: 80% da altura de tela plena [FSH]).
S9.2.2 A unidade de busca deve ser movida em
direção à descontinuidade até que a indicação de altura
comece a cair rápida e continuamente em direção à
linha base. A posição do bordo de ataque (esquerda) da
indicação de posicionamento na posição B na Figura
S.12 em relação à linha base horizontal da escala do
mostrador deve ser anotada. Uma escala com divisões
de 0,10 polegadas [2,5 mm] deve ser usada.
S9.2.3 A unidade de busca deve ser afastada da
descontinuidade até que a altura de indicação comece a
cair rápida e continuadamente em direção à linha base.
A posição do bordo de ataque da indicação na posição
C na Figura S.12 em relação à linha base horizontal da
escala do mostrador deve ser anotada.
S9.2.4 A diferença matemática entre B e C deve ser
obtida para determinar a dimensão altura da
descontinuidade.
S9.3 Comprimento. O comprimento da
descontinuidade deve ser determinado usando os
seguintes métodos:
S9.3.1 A orientação da descontinuidade deve estar
alinhada com a marca indicativa máxima da unidade de
busca. Esta marcação deve ser executada
cuidadosamente usando um método de marcação de
linha fina.
S9.3.2 A unidade de busca deve ser movida para
uma ponta da descontinuidade enquanto se mantém
parte da indicação visível no mostrador todo tempo até
que a indicação caia completamente para a linha base.
A unidade de busca deve ser movida para trás em
direção à descontinuidade até que a indicação de altura
alcance 50% da altura máxima originalmente obtida
perto do fim conforme B da Figura S.13. A posição
deve ser marcada no fim da descontinuidade na
superfície de varredura ou soldada alinhada com a
marca de indicação máxima da unidade de busca. Esta
marcação deve ser executada cuidadosamente usando
um método de marcação com linha fina.
S9.3.3 Os passos acima devem ser repetidos para se
localizar a ponta oposta da descontinuidade conforme C
da Figura S.13 e deve ser anotada cuidadosamente.
S9.3.4 O comprimento da descontinuidade deve ser
obtido medindo a distância entre as duas marcas
conforme Figura S.13.
S9.4 Posicionamento - Profundidade Abaixo da
Superfície de Varredura. A localização da
profundidade de descontinuidades pode ser lida
diretamente na escala da linha base horizontal. A
posição da profundidade das descontinuidades pode ser
lida diretamente na escala da linha base horizontal do
mostrador quando se usam os métodos acima descritos
para determinação da altura de descontinuidades. A
posição reportada deve ser o ponto mais profundo
determinado, salvo se especificado diferentemente, para
assistir nas operações de remoção.
S9.5 Posicionamento – Juntamente com a
Profundidade da Solda. O posicionamento da
descontinuidade a partir de um ponto de referência
conhecido pode ser determinado medindo-se a distancia
do ponto de referência até as marcas de comprimento
das descontinuidades estabelecidas para o comprimento.
As pedidas devem ser feitas a partir do início da
descontinuidade salvo se especificado diferentemente.
Sl0. Problemas com Descontinui-
dades
Usuários de UT para exames de soldas têm que estar
cientes dos problemas de interpretação potenciais
seguintes associados às características das
descontinuidades de solda:
Sl0 l Tipo de Descontinuidade. Som ultrassônico tem
sensibilidade variável para descontinuidades de solda
dependendo do seu tipo. A sensibilidade relativa é
mostrada nas tabelas seguintes e deve ser considerada
durante a avaliação de descontinuidades. O técnico em
UT pode mudar a sensibilidade para todos tipos de
descontinuidades mudando a regulagem do instrumento
de UT, a frequência da unidade de busca, e métodos de
medição e sondagem, incluindo padrões de varredura e
acoplamento.
Tipo de Descontinuidade Sensibilidade
Relativa UT
1) Fusão incompleta
2) Trincas (superfície)
3) Penetração inadequada
4) Trincas (abaixo da superfície)
5) Escória (contínua)
6) Escória (dispersa)
7) Porosidade (encanamento)
8) Porosidade (agrupada)
9) Porosidade (dispersa)
Máxima
-
-
-
-
-
-
-
Mínima
S10.2 Classificação Geral das Descontinuidades.
Pode ser comparada como a seguir:
Classificação Geral das
Descontinuidades
Sensibilidade
Relativa UT
(a) Plana
(b) Linear
(c) Esférica
Máxima
-
Mínima
NOTA: A tabulação acima assume a melhor orientação
para detecção e avaliação.
S10.3 Tamanho. O tamanho da descontinuidade afeta a
precisão da interpretação. Descontinuidades do tipo
planas com grande altura ou altura muito pequena
podem fornecer uma interpretação menos precisa do
que as de altura mediana. Poros pequenos e esféricos
são difíceis de dimensionar por causa das mudanças
rápidas de superfícies de reflexão que ocorrem quando
o facho de som é movido pela peça.
ANEXO S AWS D1.1/D1.1M:2010
385
S10.4 Orientação. A orientação da descontinuidade
afeta a sensibilidade do UT pois a maior sensibilidade é
a que reflete o som mais diretamente de volta à unidade
de busca. Sensibilidades relativas a respeito dos tipos e
orientação das descontinuidades são opostas ao que foi
mostrado nas tabelas anteriores. O técnico em UT
pode aumentar a sensibilidade conforme a orientação
selecionando um ângulo do facho de som que seja mais
normal ao plano da descontinuidade e à superfície
reflexiva. A seleção de ângulos que igualem o ângulo
do chanfro aumentá a sensibilidade para
descontinuidades do tipo planas e lineares que devem
ocorrer mais frequentemente ao longo deste plano.
S10.5 Localização da Descontinuidade. Localização
na solda e na base metálica adjacente pode influenciar a
capacidade de detecção e uma avaliação apropriada. As
descontinuidades próximas da superfície são mais
facilmente detectadas mas podem ser menos facilmente
mensuradas.
S10.6 Tipo de Junta de Solda e Projeto de Chanfro. O
tipo de junta de solda e o projeto de chanfro são fatores
importantes que afetam as capacidades dos UTs de
detectar descontinuidades.
São os seguintes os fatores que podem causar
problemas e devem ser considerados pelos seus
possíveis efeitos:
(1) Reforços
(2) Ângulos de bisel
(3) Ângulos de interceptação dos membros da
junção
(4) Soldas PJP
(5) Soldas Tee
(6) Membros tubulares
(7) Rugosidade e contorno da superfície de solda
Sll. Níveis de Amplitude de
Descontinuidade e Níveis de
Descontinuidade das Classes
de Solda
As seguintes categorias de nível de amplitude de
descontinuidade devem ser aplicadas na avaliação de
aceitabilidade:
Nível Descrição
1 Igual ou acima do SSL (ver Figura S.14)
2 Entre o SSL e o DRL (ver Figura S.14)
3 Igual ou menor que o DRL
(ver Figura S.14)
SSL = Nível de Sensibilidade Padrão—pela
Cláusula 6.
DRL = Nível de Desconsideração = 6 dB menos do
que o SSL.
Classes de Solda. As seguintes classes de solda devem
ser usadas na avaliação da aceitabilidade da
descontinuidade:
Classe de Solda Descrição
S Estruturas estaticamente carregadas
D Estruturas ciclicamente carregadas
R Estruturas tubulares
(substituto para RT)
X Conexões tubulares em T, Y, K
S12. Critérios de Aceitação -
Rejeição
S12.1 Amplitude. Os critérios de aceitação-rejeição da
tabela S.1 devem se aplicar quando amplitude e
comprimento são os maiores fatores e a altura máxima
da descontinuidade não for conhecida ou especificada.
S12.2 Tamanho. Quando o tamanho máximo
permissível de descontinuidade (altura e comprimento)
é conhecido e é especificado pelo Engenheiro, o
tamanho real (ambos altura e comprimento) devem ser
determinados e reportados. Avaliação final e
aceitação/rejeição devem ser do Engenheiro.
S13. Preparação e Disposição de
Relatórios
Um relatório deve ser feito de modo à claramente
identificar o trabalho e a área de exame pelo operador
de UT na época do exame. O relatório, no mínimo, deve
conter a informação mostrada no formulário de relatório
modelo, Figura S.15. Caracterização de descontinuidade
e subseqüente categorização e relatório de UT devem se
limitar ao plano, esférico e cilíndrico apenas.
Quando especificado, descontinuidades aproximando-se
do tamanho aceitável, particularmente aqueles com
alguma dúvida na sua avaliação, devem ser reportados.
Antes de uma solda submetida a UT pelo Empreiteiro
para o Proprietário ser aceita, todos formulários de
relatórios pertencentes à solda, incluindo qualquer um
que mostre aceitação anterior ao reparo, deve ser
submetida ao Proprietário ao final do trabalho. A
obrigação do Empreiteiro de reter relatórios de UT deve
cessar (1) quando da entrega de um conjunto completo
ao Proprietário, ou (2) após um ano do término do
trabalho do Empreiteiro, desde que o Proprietário seja
notificado por escrito.
ANEXO S AWS D1.1/D1.1M:2010
386
Tabela S.1
Critério de Rejeição-Aceitação (ver S12.1)
Nível Máximo Obtido de
Amplitude da
Descontinuidade
Comprimentos Máximos de Descontinuidade por Classes de Solda
Estatisticamente
Carregada
Ciclicamente
Carregada
Classe R
Tubular
Classe X
Tubular
Nível 1 – Igual ou maior que
SSL (ver S6.1 e Figura S.14)
> 5 dB e acima SSL=
nenhum permitido
0 até 5 dB e acima
SSL = 3/4 in [20 mm]
> 5 dB e acima SSL =
nenhum permitido
0 até 5 dB e acima
SSL = 1/2 in [12 mm]
Ver Figura 6.4
Ver Figura 6.5
(Utiliza Alura)
Nível 2 – Entre SSL e DRL
(ver Figura S.14)
2 in [50 mm]
Meio de 1/2 da Solda =
2 in [50 mm]
Topo & Fundo 1/4 da
solda =
3/4 in [20 mm]
Ver Figura 6.4
Ver Figure 6.5
(Utiliza Alura)
Nível 3 – Igual ou menor que
DRL (ver Figura S.14)
Desconsiderar (quando espécificado pelo Engenheiro, registrar para informação)
ANEXO S AWS D1.1/D1.1M:2010
387
Notas:
1. d1 = d2 ± 0.5 mm d3 = d4 ± 0.5 mm
SP1 = SP2 ± 1 mm SP3 = SP4 ± 1 mm
2. As tolerâncias acima devem ser consideradas apropriadas. O refletor deve, em todos os casos, ser colocado de forma a
permitir a maximização da reflexão e da indicação UT (este é um comentário geral para todas as notas no Anexo S).
Figura S.1 – Refletor de Referência Padrão (ver S5)
Observação: Deveria ser requerido que dimensões acomodem unidades de busca para a distância de caminho de som
requerida.
Figura S.2 – Bloco de Calibragem Recomendado (ver S5)
ANEXO S AWS D1.1/D1.1M:2010
388
Figura S.3 – Refletor Típico Padrão (Localizado em Maquetes de Solda e
Soldas de Produção) (ver S5)
ANEXO S AWS D1.1/D1.1M:2010
389
Procedimento:
1. Coloque duas unidades de busca de feixe de ângulo similares no bloco de calibragem ou maquete para serem
usadas na posição mostrada acima.
2. Usando métodos de transmissão, maximize a indicação obtida e obtenha um valor dB da indicação.
3. Transfira as mesmas duas unidades de busca à parte a ser examinada, oriente na mesma direção na qual o
escaneamento será realizado e obtenha um valor dB de indicações dos últimos três locais como explicado acima.
4. A diferença em dB entre o bloco de calibragem ou maquete e a média daquele obtido da parte a ser examinada
deveria ser registrada e usada para ajustar a sensibilidade padrão.
.
Figura S.4 – Correção de Transferência (ver S6.1)
Figura S.5—Profundidade de Onda de Compressão (Calibragem de
Varredura Horizontal) (ver S6.2.1)
ANEXO S AWS D1.1/D1.1M:2010
390
Figura S.6—Calibragem de Sensibilidade de Onda de Compressão (ver
S6.2.2)
Figura S.7—Calibragem de Sensibilidade e Distância de Onda de
Cisalhamento
(ver S6.3.1)
ANEXO S AWS D1.1/D1.1M:2010
391
Notas:
1. Indique o escaneamento, ou a unidade de busca deveria ser a uma distância fixa da
solda enquanto o escaneamento é realizado na solda.
2. Escaneamento de seção transversal é mostrado. É assumido que escaneamento também sera realizado completamente
em todo o comprimento da solda com um mínimo de 25% de sobreposição para assegurar 100% de cobertura. Todas as
posições de escaneamento mostradas podem não ser requeridas para cobertura total. Posições opcionais são dadas no
caso de inacess bilidade impeça o uso de algumas posições.
Figura S.8 - Métodos de Escaneamento (ver S7)
ANEXO S AWS D1.1/D1.1M:2010
392
Figura S.9—Características de Descontinuidade Esférica (ver S8.2.1)
Figura S.10 – Características de Descontinuidade Cilíndrica (ver S8.2.2)
ANEXO S AWS D1.1/D1.1M:2010
393
Figura S.11 - Características de Descontinuidade Planar (ver S8.2.3)
Figura S.12 – Dimensão da Altura da Descontinuidade (ver S9.2)
ANEXO S AWS D1.1/D1.1M:2010
395
Página______ de _______
Projeto____________________________________________________________ Relaório No _________
I.D. da Solda _______________________ Espessura ______________________ Classe _____________
Procedimento UT No. __________________________________ Técnica _____________________________
Instrumento UT _____________________________________________________________________________
Unidade de Busca: No. ___________ Ângulo____________ Freq. _______________ Tamanho_________
RESULT ADO (identificar e descrever cada descontinuidade)
No. Localização de
Nivel
Amplitude
Comprimento Altura Comentários
Esboço (identificar cada descontinuidade listada acima)
NDT Tech. ______________________________ Empreiteiro________________________________
Data do Exame __________________________ Aprovado _________________________________
Data de Aprovação__________________________
Figura S.15 – Relatório de UT (Procedimento Alternativo) (ver S13)
AWS D1.1/D1.1M:2010
396
Página intencionalmente em branco
AWS D1.1/D1.1M:2010
397
Anexo T (Informativo)
Parâmetro Oval Alfa
Esse anexo não é parte de D1.1/D1.1 M:2010, Código de Soldagem Estrutural-Aço, da AWS, mas está incluído apenas
para propósito de informação.
A Figura T.1 fornece uma fórmula e define os termos
usados para compor um valor da corda parâmetro oval
alfa α quando projetando juntas tubulares múltipla-
nares. Os valores de alfa obtidos são compatíveis com
projeto de resistência estática (Tabela 2.10) e fadiga
(Tabela 2.7, Nota e) usando o formato
puncionamentopuncionamento.
Alfa é avaliado separadamente para cada ramificação
para a qual puncionamentopuncionamento é verificado
(a "cinta de referência"), e para cada caso de carga, com
soma sendo conduzida para todas as cintas presentes no
nó, cada tempo alfa é avaliado. Na soma, o termo
cosseno expressa a influência de cintas como uma
função de posição ao redor da circunferência, e o termo
de declínio exponencial expressa a diminuição de
influência das cintas conforme a distância L1 aumenta;
esses termos são ambos unidade para a cinta de
referência que aparece novamente no denominador. Em
quadros complexos de espaço, o cálculo repetitivo pode
ser incorporado no pós-processador de projeto de junta
para a análise de computador de projeto.
Para cálculos manuais, o projetista pode preferir as
formas mais simples de alfa dadas na Tabela 2.10. No
entanto, esses não cobrem os casos multiplanares em
que valores mais altos de alfa podem se aplicar (por
exemplo, 3.8 para uma junta transversal em estilo de
cubo com quatro ramificações), e requerem uma
classificação um tanto arbitrária de tipos de junta. Para
juntas cujo padrão de carga cai entre os casos padrão
(por exemplo, parte da carga é carregada como uma
junta em K- e parte como uma junta em T-), valores
interpolados de alfa deveriam ser determinados. Alfa
computado tomaria conta disso automaticamente.
AWS D1.1/D1.1M:2010
398
Figura T.1 – Definição de Termos para Alfa Computado
Página intencionalmente em branco
AWS D1.1/D1.1M:2010
399
Anexo U (Informativo)
Lista de Documentos de Referência
Esse anexo não é parte de Dl.l/D1.1M:2010, Código Soldagem Estrutural - Aço, mas foi incluído apenas para propósitos
informativos.
1. AWS D1.3/D1.3M:2008, Structural Welding Code-
Sheet Steel.
2. AWS A3.0, Standard Welding Terms and
Definitions, Including Terms for Adhesive Bonding,
Brazing, Soldering, Thermal Cutting, and Thermal
Spraying.
3. AWS A2.4, Symbols for Welding, Brazing, and
Non-destructive Examination.
4. ANSI Z49.1, Safety in Welding, Cutting, and Allied
Processes.
5. ASTM A 6, Standard Specification for General
Requirements for Rolled Structural Steel Bars,
Plates, Shapes, and Sheet Piling.
6. AISC Load and Resistance Factor Design
Specification for Structural Steel in Buildings.
7. ASTM A 673, Specification for Sampling
Procedure for Impact Testing of Structural Steel.
8. ASTM E 92, Test Method for Vickers Hardness of
Metallic Materials.
9. ASTM E 140, Hardness Conversion Tables for
Metals.
10. AWS Dl.O, Code for Welding in Building
Construction.
11. AWS D2.0, Specification for Welded Highway and
Railway Bridges.
12. ASTM A 370, Mechanical Testing of Steel
Products.
13. AWS A5.25/A5.25M-97 (R2009), Specification for
Carbon and Low-Alloy Steel Electrodes and Fluxes
for Electroslag Welding.
14. AWS A5.26/A5.26M-97 (R2009), Specification for
Carbon and Low-Alloy Steel Electrodes for Electro-
gas Welding.
15. AWS A5.1/A5.1M:2004, Specification for Carbon
Steel Electrodes for Shielded Metal Arc Welding.
16. AWS A5.5/A5.5M:2006, Specification for Low-
Alloy Steel Electrodes for Shielded Metal Arc
Welding.
17. AWS A5.17/A5.17M-97 (R2007), Specification for
Carbon Steel Electrodes and Fluxes for Submerged
Arc Welding.
18. AWS A5.23/A5.23M:2007, Specification for
Low-Alloy Steel Electrodes and Fluxes for
Submerged Arc Welding.
19. AWS A5.01M/A5.01:2008 (ISO 14344:2002
MOD), Procurement Guidelines for Consumables-
Welding and Allied Processes- Flux and Gas
Shielded Electrical Welding Processes.
20. AWS A5.18/A5.18M:2005, Specification for Car-
bon Steel Electrodes and Rods for Gas Shielded Arc
Welding.
21. AWS A5.20/A5.20M:2005, Specification for
Carbon Steel Electrodes for Flux Cored Arc
Welding.
22. AWS A5.28/A5.28M:2005, Specification for
Low-Alloy Steel Filler Metals for Gas Shielded
Arc Welding.
AWS D1.1/D1.1M:2010
400
23. AWS A5.29/A5.29M:2010, Specification for Low-
Alloy Steel Electrodes for Flux Cored Arc Welding.
24. AWS A5.12M/A5.12:2009 (ISO 6848:2004
MOD), Specification for Tungsten and Oxide
Dispersed Tungsten Electrodes for Arc Welding and
Cutting.
25. AWS A5.30/A5.30M:2007, Specification for
Consumables Inserts.
26. AWS A5.32/A5.32M-97 (R2007), Specification for
Welding Shielding Gases
27. ASTM A 435, Specification for Straight Beam
Ultrasonic Examination of Steel Plates.
28. ASME B46.1, Surface Texture (Surface Roughness,
Waviness, and Lay).
29. AWS C4.1-77 (R 2010), Criteria for Describing
Oxygen-Cut Surfaces and Oxygen Cutting Surface
Roughness Gauge.
30. AWS QC1:2007, Standard for AWS Certification of
Welding Inspectors.
31. Canadian Standard Association (CSA) Standard
W178.2, Certification of Welding Inspectors.
32. AWS B1.10M/B1.10:2009, Guide for
Nondestructive Examination of Welds.
33. ASTM E 709, Guide for Magnetic Particle
Inspection.
34. ASTM E 165, Test Method for liquid Penetrant
Examination.
35. American Society for Nondestructive Testing,
Recommended Practice No. SNT-TC-1A.
36. ASTM E 94, Standard Recommended Practice for
Radiographic Testing.
37. ASTM E 142, Standard Method for Controlling
Quality of Radiographic Testing.
38. ASTM E 747, Controlling Quality of Radiographic
Testing Using Wired Penetrameters.
39. ASTM E 1032, Radiographic Examination of
Weldments.
40. ASME Boiler and Pressure Vessel Code, Section V,
Article 2.
41. The International Institute of Welding (IIW)
Ultrasonic Reference Block.
42. ASTM A 108, Specification for Steel Bars, Carbon,
Cold-Finished, Standard Quality Grades.
43. AWS C5.4-93, Recommended Practices for Stud
Welding.
44. AWS Welding Handbook, Volume 1, 9th Edition,
Chapter 13.
45. ASTM E 23, Standard Methods for Notched Bar
Impact Testing of Metallic Materials, for Type A
Charpy (Simple Beam) Impact Specimen.
46. All ASTM base metals listed in Table 3.1 and Table
4.9 are found in ASTM 01.04, Steel-Structural,
Re-inforcing, Pressure Vessel Railway, ASTM
01.03, Steel-Plate, Sheet, Strip, Wire; Stainless
Steel Bar, and ASTM 01.01, Steel-Piping, Tubing,
Fittings.
47. API 2W, Specification for Steel Plates for Offshore
Structures, Produced by Thermo-Mechanical
Control Processing.
48. API 2Y, Specification for Steel Plates,
Quenched-and-Tempered, for Offshore Structures.
49. AWS D1.6/D1.6M:2007, Structural Welding Code-
Stainless Steel.
AWS D1.1/D1.1M:2010
401
Anexo V (Informativo)
Propriedades de Resistência de Metal de Adição
Esse anexo não é parte de D1.1/D1.1 M:2010, Código de Soldagem Estrutural-Aço, da AWS, mas está incluído apenas
para propósito de informação.
Os dados contidos nesse anexo são copiados da especificação A5 apropriada. Valores mostrados são para apenas para
propósito de referência e outras variáveis de processo podem ter de ser controladas para alcançar a Resistência à Tração
Nominal e Limite de escoamento Nominal. (Ver A5, Especificação de Metal de Adição, da AWS, aplicável no caso, para
uma descrição mais específica.)
AWS A5.1/A5.1M, Especificação para Eletrodos de Aço de Carbono para
Soldagem a Arco
com Eletrodo Revestido a,b
Classificação AWS Resistência à Tração
Limite de escoamento a
Compensação de 0,2%
Alongamento
Percentagem em 4x
Comprimento de Diâmetro
A5 1 A5 1M A5 1 (ksi) A5 1M (MPa) A5 1 (ksi) A5 1M (MPa)
E6010 E4310 60 430 48 330 22
E6011 E4311 60 430 48 330 22
E6012 E4312 60 430 48 330 17
E6013 E4313 60 430 48 330 17
E6018 E4318 60 430 48 330 22
E6019 E4319 60 430 48 330 22
E6020 E4320 60 430 48 330 22
E6022 E4322 60 430 Não Especificado Não Especificado
E6027 E4327 60 430 48 330 22
E7014 E4914 70 490 58 400 17
E7015 E4915 70 490 58 400 22
E7016 E4916 70 490 58 400 22
E7018 E4918 70 490 58 400 22
E7024 E4924 70 490 58 400 17c
E7027 E4927 70 490 58 400 22
E7028 E4928 70 490 58 400 22
E7048 E4948 70 490 58 400 22
E7018M E4918M Nota d Nota d 53-72e
370-500e
24
a
Requisitos estão na condição de soldagem em bruto com o envelhecimento.
b
Valores únicos são mínimos.
c
Metal de solda de eletrodos identificados como E7024-1 [E4924-1] devem ter alongamento de no mínimo 22%.
d
Resistência à tração desse metal de solda é 70 ksi [490 MPa] nominal.
e
Para eletrodos de 3/32 in [2,4 mm], o limite de escoamento máximo é 77 ksi [530 MPa].
AWS D1.1/D1.1M:2010 ANEXO V
402
AWS A5.5/A5.5M, Especificação para Eletrodos de Aço de Carbono para
Soldagem a
Arco com Eletrodo Revestidoa
Classificação AWS Resistência à Tração
Limite de escoamento a Compensação
de 0,2%
Alongamento
Condição
Pós-Soldac
A5.5 A5.5M ksi MPa ksi MPa Percentual
E7010-Pl E4910-P1 70 490 60 415 22 AW
E7010-Al E4910-Al 70 490 57 390 22 PWHT.
E7010-G E4910-G 70 490 57 390 22 AW ou PWHT
E7011-Al E4911-Al 70 490 57 390 22 PWHT
E7011-G E4911-G 70 490 57 390 22 AW ou PWHT
E7015-X E4915-X 70 490 57 390 22 PWHT
E7015-B2L E4915-B2L 75 520 57 390 19 PWHT
E7015-G E4915-G 70 490 57 390 22 AW ou PWHT
E7016-X E4916-X 70 490 57 390 22 PWHT
E7016-B2L E4916-B2L 75 520 57 390 19 PWHT
E7016-G E4916-G 70 490 57 390 22 AW ou PWHT
E7018-X E4918-X 70 490 57 390 22 PWHT
E7018-B2L E4918-B2L 75 520 57 390 19 PWHT
E7018-C3L E4918-C3L 70 490 57 390 22 AW
E7018-W1 E4918-W1 70 490 60 415 22 AW
E7018-G E4918-G 70 490 57 390 22 AW ou PWHT
E7020-Al E4920-Al 70 490 57 390 22 PWHT
E7020-G E4920-G 70 490 57 390 22 AW ou PWHT
E7027-Al E4927-Al 70 490 57 390 22 PWHT
E7027-G E4927-G 70 490 57 390 22 AW ou PWHT
E8010-P1 E5510-P1 80 550 67 460 19 AW
E8010-G E5510-G 80 550 67 460 19 AW ou PWHT
E8011-G E5511-G 80 550 67 460 19 AW ou PWHT
E8013-G E5513-G 80 550 67 460 16 AW ou PWHT
E8015-X E5515-X 80 550 67 460 19 PWHT
E8015-B3L E5515-B3L 80 550 67 460 17 PWHT
E8015-G E5515-G 80 550 67 460 19 AW ou PWHT
E8016-X E5516-X 80 550 67 460 19 PWHT
E8016-C3 E5516-C3 80 550 68 a 80d
470 a 550d
24 AW
E8016-C4 E5516-C4 80 550 67 460 19 AW
E8016-G E5516-G 80 550 67 460 19 AW ou PWHT
E8018-X E5518-X 80 550 67 460 19 PWHT
E8018-B3L E5518-B3L 80 550 67 460 17 PWHT
E8018-C3 E5518-C3 80 550 68 a 80d
470 a 550d
24 AW
E8018-C4 E5518-C4 80 550 67 460 19 AW
E8018-
NM1
E5518-
NM1
80 550 67 460 19 AW
E8018-P2 E5518-P2 80 550 67 460 19 AW
E8018-W2 E5518-W2 80 550 67 460 19 AW
E8018-G E5518-G 80 550 67 460 19 AW ou PWHT
E8045-P2 E5545-P2 80 550 67 460 19 AW
E9010-P1 E6210-P1 90 620 77 530 17 AW
AWS D1.1/D1.1M:2010 ANEXO V
403
E9010-G E6210-G 90 620 77 530 17 AW ou PWHT
E9011-G E6211-G 90 620 77 530 17 AW ou PWHT
(Continua)
AWS A5.5/A5.5M, Especificação para Eletrodos de Aço de Carbono para
Soldagem a
Arco com Eletrodo Revestidoa
Classificação AWS Resistência à Tração
Limite de escoamento a Compensação
de 0,2%
Alongamento
Condição
Pós-Soldac
A5.5 A5.5M ksi MPa ksi MPa Percentual
E9013-G E6213-G 90 620 77 530 14 AW ou PWHT
E9015-X E6215-X 90 620 77 530 17 PWHT
E9015-G E6215-G 90 620 77 530 17 AW ou PWHT
E9016-X E6216-X 90 620 77 530 17 PWHT
E9016-G E6216-G 90 620 77 530 17 AW ou PWHT
E9018M E6218M 90 620 78 a 90d
540 a 620d
24 AW
E9018-P2 E6218-P2 90 620 77 530 17 AW
E9018-X E6218-X 90 620 77 530 17 PWHT
E9018-G E6218-G 90 620 77 530 17 AW ou PWHT
E9045-P2 E6245-P2 90 620 77 530 17 AW
E10010-G E6910-G 100 690 87 600 16 AW ou PWHT
E10011-G E6911-G 100 690 87 600 16 AW ou PWHT
E10013-G E6913-G 100 690 87 600 16 AW ou PWHT
E10015-X E6915-X 100 690 87 600 16 PWHT
E10015-G E6915-G 100 690 87 600 16 AW ou PWHT
E10016-X E6916-X 100 690 87 600 16 PWHT
E10016-G E6916-G 100 690 87 600 16 AW ou PWHT
E10018M E6918M 100 690 88 a 100d
610 a 690d
20 AW
E10018-X E6918-X 100 690 87 600 16 PWHT
E10018-G E6918-G 100 690 87 600 16 AW ou PWHT
E10045-P2 E6945-P2 100 690 87 600 16 AW
E11010-G E7610-G 110 760 97 670 15 AW ou PWHT
E11011-G E7611-G 110 760 97 670 15 AW ou PWHT
E11013-G E7613-G 110 760 97 670 13 AW ou PWHT
E11015-G E7615-G 110 760 97 670 15 AW ou PWHT
E11016-G E7616-G 110 760 97 670 15 AW ou PWHT
E11018-G E7618-G 110 760 97 670 15 AW ou PWHT
E11018M E7618M 110 760 98 a 110d
680 a 760d
20 AW
E12010-G E8310-G 120 830 107 740 14 AW ou PWHT
E12011-G E8311-G 120 830 107 740 14 AW ou PWHT
E12013-G E8313-G 120 830 107 740 11 AW ou PWHT
E12015-G E8315-G 120 830 107 740 14 AW ou PWHT
E12016-G E8316-G 120 830 107 740 14 AW ou PWHT
E12018-G E8318-G 120 830 107 740 14 AW ou PWHT
E12018M E8318M 120 830 108 a 120d
745 a 830d
18 AW
E12018M1 E8318M1 120 830 108 a 120d
745 a 830d
18 AW
a
Valores únicos são mínimos, exceto quando especificado de outra forma.
b
A letra sufixo “X” como usada nessa tabela representa os sufixos (A , B , B2, etc.) que são testados apenas na condição PWHT.
c
“AW” significa soldagem bruta, que pode ou não ser envelhecida, segundo opção do fabricante. “PWHT” significa tratado com
aquecimento pós-solda.
d
Para eletrodos de 3/32 in [2,5 mm], o valor mais alto para limite de escoamento pode ser 5 ksi [35 MPa] mais alto que o valor indicado.
AWS D1.1/D1.1M:2010 ANEXO V
404
AWS A5.1/A5.1M, Especificação para Eletrodos e Fluxos de Aço de Carbono
para Soldagem a Arco Submerso (Continua)
Classificação Eletrodo-Fluxoa
Resistência à Tração
psi [MPa]
Limite de escoamentob
psi [MPa]
Alongamentob
%
A5.17 A5.17M
F6XX-EXXX F43XX-EXXX 60 000–80 000 [430–560] 48 000 [330] 22
F7XX-EXXX F48XX-EXXX 70 000-95 000 [480-660] 58 000 [400] 22
a
A letra “S” irá aparecer depois de “F” como parte da designação de classificação quando o fluxo sendo classificado é uma escória
prensada ou uma mistura de escória prensada com fluxo sem uso (virgem). A letra "C" irá aparecer após "E" como parte de uma
designação de classificação quando o eletrodo sendo classificado é um eletrodo compósito. A letra "X" usada em vários lugares nessa
tabela representa, respectivamente, a condição de tratamento de aquecimento, a tenacidade do metal de solda e a classificação do
eletrodo.
b
Requisitos mínimos. Limite de escoamento de compensação de 0,2% e alongamento em 2 in [51 mm] de comprimento medidor.
AWS A5.18/A5.18M, Especificação para Eletrodos e Varas de Aço de Carbono Pra
Soldagem a Arco com Gás de Proteção
Classificação AWSa Resistência à Tração
(mínima)
Limite de escoamentob
(mínimo)
Alongamentob
% (mínimo)
A5.18 A5.18M Gás de Proteção psi MPa psi MPa
ER70S-2
ER70S-3
ER70S-4
ER70S-6
ER70S-7
ER48S-2
ER48S-3
ER48S-4
ER48S-6
ER48S-7
70 000 480 58 000 400 22
ER70S-G ER48S-G d 70 000 480 58 000 400 22
E70C-3X
E70C-6X
E48C-3X
E48C-6X
75–80% Ar/equilíbrio CO2
ou CO2
70 000 480 58 000 400 22
E70C-G(X) E48C-G(X) d 70 000 480 58 000 400 22
E70C-GS(X) E48C-GS(X) d 70 000 480 Não Especificado
Não
Especificado
a
O X final mostrado na classificação representa um “C” ou “M” que corresponde ao gás protetor com o qual o eletrodo é classificado. O uso de
“C” designa % de proteção de CO2 (AWS A5.32 Classe SG-C); “M” designa 75–80% Ar/equilíbrio de CO2 (AWS A5.32 Classe SG-AC-Y,
em que Y é de 20 a 25). Para E70C-G [E48C-G] e E70C-GS [E48C-GS , O “C” ou “M” final pode ser omitido.
b
Limite de escoamento de compensação de 0,2% e alongamento em 2 in [50 mm] de comprimento medidor.
c
CO2 = gás de proteção de dióxido de carbono (AWS A5.32 Classe SG-C). O uso de CO2 para propósitos de classificação não é para ser
interpretado para impedir o uso de misturas de gás de proteção Ar/CO2 (AWS A5.32 Classe SG-AC-Y) ou Ar/O2 (AWS A5.32 Classe SG-AO-
X). Um metal de adição testado com misturas de gases, tais como Ar/O2, ou Ar/CO2, pode resultar em metal de solda tendo resistência mais
alta e a alongamento mais baixo.
d
O gás de proteção é como combinado entre comprador e fornecedor, a menos que designado pelo sufixo "C" ou "M".
AWS D1.1/D1.1M:2010 ANEXO V
405
A5.20/A5.20M, Especificação para Eletrodos de Aço de Carbono
para Soldagem a Arco com Arame Tubular
Classificação AWSa
Resistência à Tração
ksi [MPa]
Limite de
escoamento
Mínimoa
ksi [MPa]
% Mínima
Alongamentob Energia de Impacto Mínima
no Entalhe V de Charpy
A5.20 A5.20M
E7XT-1C, -1M
E7XT-2Cc, -2Mc
E7XT-3c
E7XT-4
E7XT-5C, -5M
E7XT-6
E7XT-7
E7XT-8
E7XT-9C, -9M
E7XT-10c
E7XT-11
E7XT-12C, -12M
E6XT-13c
E7XT-13c
E7XT-14c
E6XT-G
E7XT-G
E6XT-GSc
E7XT-GS
E49XT-1C, -1M
E49XT-2Cc, -2Mc
E49XT-3c
E49XT-4
E49XT-5C, -5M
E49XT-6
E49XT-7
E49XT-8
E49XT-9C, -9M
E49XT-10c
E49XT-11
E49XT-12C, -12M
E43XT-13c
E49XT-13c
E49XT-14c
E43XT-G
E49XT-G
E43XT-GSc
E49XT-GSc
. 70–95 [490–670]
70 [490] min.
70 [490] min.
70 -95 [490-670]
70 -95 [490-670]
70 -95 [490-670]
70 -95 [490-670]
70 -95 [490-670]
70 -95 [490-670]
70 [490] min.
70 -95 [490-670]
70 -90 [490-620]
60 [430] min.
70 [490] min.
70 [490] min.
60 -80 [430-600]
70 -95 [490-670]
60 [430] min.
70 [490] min.
58 [390]
Não Especificado
Não Especificado
58 [390]
58 [390]
58 [390]
58 [390]
58 [390]
58 [390]
Não Especificado
58 [390]
58 [390]
Não Especificado
Não Especificado
Não Especificado
48 [330]
58 [390]
Não Especificado
Não Especificado
22
Não Espec.
Não Espec.
22
22
22
22
22
22
Não Espec.
20d
22
Não Espec.
Não Espec.
Não Espec.
22
22
Não Espec.
Não Espec.
20 ft.lbf @ 0 F [27 J @ –20 C]
Não Especificado
Não Especificado
Não Especificado
20 ft.lbf @ -20 F [27 J @ -30 C]
20 ft.lbf @ -20 F [27 J @ -30 C]
Não Especificado
20 ft.lbf @ -20 F [27 J @ -30 C]
20 ft.lbf @ -20 F [27 J @ -30 C]
Não Especificado
Não Especificado
20 ft.lbf @ -20 F [27 J @ -30 C]
Não Especificado
Não Especificado
Não Especificado
Não Especificado
Não Especificado
Não Especificado
Não Especificado
a
Limite de escoamento a compensação de 0,2%
b
Em comprimento medidor de 2 in [50 mm] quando um espécime de tração de diâmetro nominal de 0,500 in [12,5 mm] e razão nominal
de comprimento medidor a diâmetro de 4:1 são usados.
c
Essas classificações são pretendidas para soldagem de passe único. Elas não são para soldagem de passe múltiplo. Apenas resistência à
tração é especificada.
d
Em comprimento medidor de 1 in [25 mm] quando um espécime de tração de diâmetro nominal de 0,250 [6,5 mm] é usado como
permitido para tamanhos de 0,045 in [1,2 mm] e menores da classificação E7XT-11 [E49XT-11].
AWS D1.1/D1.1M:2010 ANEXO V
406
A5.23/A5.23M, Especificação para Fluxos e Aço de Baixa
Liga para Soldagem a Arco Submerso
Classificações de Eletrodo-Fluxoa
Resistência à Traçãob
psi [MPa]
Limite de escoamentob
(Compensação de 0,2%)
psi [MPa]
Alongamentob
%
A5.23 A5.23M
Classificações de Passe Múltiplo
F7XX-EXX-XX
F8XX-EXX-XX
F9XX-EXX-XX
F10XX-EXX-XX
F11XX-EXX-XX
F12XX-EXX-XX
F13XX-EXX-XX
F49XX-EXX-XX
F55XX-EXX-XX
F62XX-EXX-XX
F69XX-EXX-XX
F76XX-EXX-XX
F83XX-EXX-XX
F90XX-EXX-XX
70 000-95 000 [490-660]
80 000-100 000 [550-700]
90 000-110 000 [620-760]
100 000-120 000 [690-830]
110 000-130 000 [760-900]
120 000-140 000 [830-970]
130 000-150 000 [900-1040]
58 000 [400]
68 000 [470]
78 000 [540]
88 000 [610]
98 000 [680]
108 000 [740]
118 000 [810]
22
20
17
16
15c
14c
14c
Classificações de Duas Execuções
F6TXX-EXX
F7TXX-EXX
F8TXX-EXX
F9TXX-EXX
F10TXX-EXX
F11TXX-EXX
F12TXX-EXX
F13TXX-EXX
F43TXX-EXX
F49TXX-EXX
F55TXX-EXX
F62TXX-EXX
F69TXX-EXX
F76TXX-EXX
F83TXX-EXX
F90TXX-EXX
60 000 [430]
70 000 [490]
80 000 [550]
90 000 [620]
100 000 [690]
110 000 [760]
120 000 [830]
130 000 [900]
50 000 [350]
60 000 [415]
70 000 [490]
80 000 [555]
90 000 [625]
100 000 [690]
110 000 [760]
120 000 [830]
22
22
20
17
16
15
14
14
a
A letra “S” irá aparecer depois de “F” como parte da designação de classificação quando o fluxo sendo classificado é uma escória
prensada ou uma mistura de escória prensada com fluxo sem uso (virgem). A letra "C" irá aparecer após "E" como parte de uma
designação de classificação quando o eletrodo usado é um eletrodo compósito. Para classificações de duas execuções,a letra “G”
aparecerá após o designador de impacto (imediatamente antes do hífen) para indicar que o aço base usado para classificação não é
um dos aços base prescritos em AWS A5.23/A5.23M mas é um aço diferente, como acordado entre o comprador e o fornecedor. A letra
"X" usada em vários lugares nessa tabela representa, respectivamente, a condição de tratamento de aquecimento, a tenacidade do metal
de solda e a classificação do metal de solda.
b
Para classificações de passe múltiplo, os requisitos listados na tabela para limite de escoamento e % de alongamento (em comprimento
medidor de 2 in [50 mm]) são requisitos mínimos. Para classificações de duas execuções, os requisitos listados para resistência à
tração e % de alongamento (em comprimento medidor de 1 in [25 mm]) são requisitos mínimos.
c
Alongamento pode ser reduzido em um ponto percentual para os metais base F11XX-EXX-XX, F11XX-ECXX-XX, F12XX-EXX-
XX, F12XX-ECXX-XX, F13XX-EXX-XX, e F13XX-ECXX-XX [F76-EXX-XX, F76-ECXX-XX, F83XX-EXX-XX, F83XX-ECXX-
XX, F90XX-EXX-XX, e F90XX-ECXX-XX] nos 25% superiores de sua faixa de resistência à tração.
AWS D1.1/D1.1M:2010 ANEXO V
407
A5.28/A5.28M, Especificação para Eletrodos e Varas de Baixa Liga para Soldagem com
Proteção para Soldagem a Arco co Gás de Proteção
Classificação AWS
Gás de Proteçãoa
Resistência à Tração
(mínima)
Limite de escoamentob
(mínima)
Alongamentob
Percentual
(mínima)
Condição
de Teste
A5.28 A5.28M psi MPa psi MPa
ER70S-B2L
E70C-B2L
ER70S-A1
ER49S-B2L
E49C-B2L
ER49S-A1
Argônio/1–5% O2
(Classes SG-AO-1
a SG-AO-5)
75 000 515 58 000 400 19
PWHT
ER80S-B2
E80C-B2
ER55S-B2
E55C-B2
80 000 550 68 000 470 19
ER80S-B3L
E80C-B3L
ER55S-B3L
E55C-B3L
80 000 550 68 000 17
ER90S-B3
E90C-B3
ER62S-B3
E62C-B3
90 000 620 78 000 540 17
ER80S-B6 ER55S-B6 80 000 550 68 000 470 17
E80C-B6 E55C-B6 80 000 550 68 000 470 17
ER80S-B8 ER55S-B8 80 000 550 68 000 470 17
E80C-B8 E55C-B8 80 000 550 68 000 470 17
ER90S-B9 ER62S-B9
Argônio/5% O2
(Classe SG-AC-5)
90 000 620 60 000 410 16
E90C-B9 E62C-B9
Argônio/5-25% CO2
(Classes SG-AC-5
a SG-AC-25)
E70C-Ni2 E49C-Ni2
Argônio/1–5% O2
(Classes SG-AO-1
a SG-AO-5)
70 000 490 58 000 400 24 PWHT
ER80S-Ni1
E80C-Ni1
ER55S-Ni1
E55C-Ni1
80 000 550 68 000 470 24
Soldagem
em Bruto
ER80S-Ni2
E80C-Ni2
ER80S-Ni3
E80C-Ni3
ER55S-Ni2
E55C-Ni2
ER55S-Ni3
E55C-Ni3
80 000 550 68 000 470 24 PWHT
ER80S-D2 ER55S-D2 CO2 (Classe SG-C) 80 000 550 68 000 470 17
Soldagem
em Bruto
ER90S-D2
E90C-D2
ER62S-D2
E62C-D2
Argônio/1–5% O2
(Classes SG-AO-1
a SG-AO-5)
90 000 620 78 000 540 17
ER100S-1 ER69S-1
Argônio/2% O2
(Classe SG-AO-2)
100 000 690 88 000 610 16
ER110S-1 ER76S-1 110 000 760 95 000 660 15
ER120S-1 ER83S-1 120 000 830 105 000 730 14
E90C-K3 E62C-K3
Argônio/5-25% CO2
(Classes SG-AC-5
a SG-AC-25)
90 000 620 78 000 540 18
E100C-K3 E69C-K3 100 000 690 88 000 610 16
E110C-K3
E110C-K4
E76C-K3
E76C-K4
110.000 760 98 000 680 15
E120C-K4 E83C-K4 120 000 830 108 000 750 15
E80C-W2 E55C-W2 80 000 550 68 000 470 22
(Continuação)
AWS D1.1/D1.1M:2010 ANEXO V
408
A5.28/A5.28M, Especificação para Eletrodos e Varas de Baixa Liga para Soldagem com
Proteção
para Soldagem a Arco co Gás de Proteção (Continuação)
Classificação AWS
Gás de Proteçãoa
Resistência à Tração
(mínima)
Limite de escoamentob
(mínima)
Alongamentob
Percentual
(mínima)
Condição
de Teste
A5.28 A5.28M psi MPa psi MPa
ER70S-G
E70C-G
ER49S-G
E49C-G
Nota c 70 000 490 Nota d Nota d Nota d Nota d
ER80S-G
E80C-G
ER55S-G
E55C-G
Nota c 80 000 550 Nota d Nota d Nota d Nota d
ER90S-G
E90C-G
ER62S-G
E62C-G
Nota c 90 000 620 Nota d Nota d Nota d Nota d
ER100S-G
E100C-G
ER69S-G
E69C-G
Nota c 100 000 690 Nota d Nota d Nota d Nota d
ER110S-G
E110C-G
ER76S-G
E76C-G
Nota c 110 000 760 Nota d Nota d Nota d Nota d
ER120S-G
E120C-G
ER83S-G
E83C-G
Nota c 120 000 830 Nota d Nota d Nota d Nota d
a
O uso de um gás de proteção particular para propósitos de classificação não será interpretado de forma a restringir o uso de outras
misturas de gases. Um metal de adição testado com misturas de gases, tais como Argônio/O2, ou Argônio/CO2, pode resultar em metal
de solda tendo resistência e alongamento diferentes.
b
Limite de escoamento de compensação de 0,2% e alongamento em 2 in [51 mm] de comprimento medidor.
c
O gás de proteção deve ser como acordado entre o comprador e o fornecedor.
d
Não especificado (como acordado entre comprador e fornecedor).
(Continua)
AWS A5.29/A5.29M, Especificação para Eletrodos de Aço de Carbono
para Soldagem a Arco com Arame Tubular
Classificação(ões) AWS a,b c
A5.29 A5.29M Condição
Resistência à
Tração
ksi [MPa]
Limite de
Elasticidade
ksi [MPa]
%
Alongamen
to
Mínimo
Impacto Mínimo de Energia no Entalhe V de
Charpy
E7XT5-A1C, -A1M E49XT5-A1C, -A1M PWHT 70-90 [490-620] 58 [400] min. 20 20 ft.lbf @ -20 F [27 J @ -30 C]
E8XT1-A1C, -A1M E55XT1-A1C, -A1M PWHT 80-100 [550-690] 68 [470] min. 19 Não Especificado
E8XT1-B1C, -B1M, -B1LC, -B1LM E55XT1-B1C, -B1M, -B1LC, -B1LM PWHT 80-100 [550-690] 68 [470] min. 19 Não Especificado
E8XT1-B2C, -B2M, -B2HC, -B2HM,
-B2LC, -B2LM
E8XT5-B2C, -B2M, -B2LC, -B2LM
E55XT1-B2C, -B2M, -B2HC, -
B2HM,
-B2LC, -B2LM
E55XT5-B2C, -B2M, -B2LC, -B2LM
PWHT 80-100 [550-690] 68 [470] min. 19 Não Especificado
E9XT1-B3C, -B3M, -B3LC, -B3LM,
-B3HC, -B3HM
E9XT5-B3C, -B3M
E62XT1-B3C, -B3M, -B3LC, -
B3LM,
-B3HC, -B3HM
E62XT5-B3C, -B3M
PWHT 90-110 [620-760] 78 [540] min. 17 Não Especificado
E10XT1-B3C, -B3M E69XT1-B3C, -B3M PWHT 100-120 [690-830] 88 [610] min. 16 Não Especificado
E8XT1-B6C,d
-B6M,d
-B6LC,d
-
B6LM,d
E8XT5-B6C,d
-B6M,d
-B6LC,d
-B6LMd
E55XT1-B6C, -B6M, -B6LC, -B6LM
E55XT5-B6C, -B6M, -B6LC, -B6LM
PWHT 80-100 [550-690] 68 [470] min. 19 Não Especificado
E8XT1-B8C,d
–B8M,d
–B8LC,d
–
B8LM,d
E8XT5-B8C,d
–B8M,d
–B8LC,d
–
B8LMd
E55XT1-B8C, -B8M, -B8LC, -B8LM
E55XT5-B8C, -B8M, -B8LC, -B8LM
PWHT 80-100 [550-690] 68 [470] min. 19 Não Especificado
E9XT1-B9C, -B9M E62XT1-B9C, -B9M PWHT 90-120 [620-830] 78 [540] min. 16 Não Especificado
E6XT1-Ni1C, -Ni1M E43XT1-Ni1C, -Ni1M AW 60-80 [430-550] 50 [340] min. 22 20 ft.lbf @ -20 F [27 J @ -30 C]
E7XT6-Ni1 E49XT6-Ni1 AW 70-90 [490-620] 58 [400] min. 20 20 ft.lbf @ -20 F [27 J @ -30 C]
E7XT8-Ni1 E49XT8-Ni1 AW 70-90 [490-620] 58 [400] min. 20 20 ft.lbf @ -20 F [27 J @ -30 C]
E8XT1-Ni1C, -Ni1M E55XT1-Ni1C, -Ni1M AW 80-100 [550-690] 68 [470] min. 19 20 ft.lbf @ -20 F [27 J @ -30 C]
E8XT1-Ni1C, -Ni1M E55XT1-Ni1C, -Ni1M PWHT 80-100 [550-690] 68 [470] min. 19 20 ft.lbf @ -60 F [27 J @ -50 C]
E7XT8-Ni2 E49XT8-Ni2 AW 70-90 [490-620] 58 [400] min. 20 20 ft.lbf @ -20 F [27 J @ -30 C]
E8XT8-Ni2 E55XT8-Ni2 AW 80-100 [550-690] 68 [470] min. 19 20 ft.lbf @ -20 F [27 J @ -30 C]
E8XT1-Ni2C, -Ni2M E55XT1-Ni2C, -Ni2M AW 80-100 [550-690] 68 [470] min. 19 20 ft.lbf @ -40 F [27 J @ -40 C]
E8XT5-Ni2C,e
-Ni2Me
E55XT5-Ni2C,e
-Ni2Me
PWHT 80-100 [550-690] 68 [470] min. 19 20 ft.lbf @ -75 F [27 J @ -60 C]
E9XT1-Ni2C, -Ni2M E62XT1-Ni2C, -Ni2M AW 90-110 [620-760] 78 [540] min. 17 20 ft.lbf @ -40 F [27 J @ -40 C]
E8XT5-Ni3C,e
-Ni3Me
E55XT5-Ni3C,e
-Ni3Me
PWHT 80-100 [550-690] 68 [470] min. 19 20 ft.lbf @ -100 F [27 J @ -70 C]
E9XT5-Ni3C,e
-Ni3Me
E62XT5-Ni3C,e
-Ni3Me
PWHT 90-110 [620-760] 78 [540] min. 17 20 ft.lbf @ -100 F [27 J @ -70 C]
ANEXO
V
AWS
D1.1/D1.1M:2010
ANEXO V
AWS A5.29/A5.29M, Especificação para Eletrodos de Aço de Carbono
para Soldagem a Arco com Arame Tubular
Classificação(ões) AWS a, b
Condiçãoc
Resistência à
Tração
ksi [MPa]
Limite de
Elasticidade
ksi [MPa]
%
Alongamento
Mínimo
Impacto Mínimo de Energia no Entalhe V de
Charpy.
A5.29 A5.29M
E8XT11-Ni3 E55XT11-Ni3 AW 80-100 [550-690] 68 [470] min. 19 20 ft.lbf @ 0 F [27 J @ –20 C]
E9XT1-D1C, -D1M E62XT1-D1C, -D1M AW 90-110 [620-760] 78 [540] min. 17 20 ft.lbf @ -40 F [27 J @ -40 C]
E9XT5-D2C, -D2M E62XT5-D2C, -D2M PWHT 90-110 [620-760] 78 [540] min. 17 20 ft.lbf @ -60 F [27 J @ -50 C]
E10XT5-D2C, -D2M E69XT5-D2C, -D2M PWHT 100-120 [690-830] 88 [610] min. 16 20 ft.lbf @ -40 F [27 J @ -40 C]
E9XT1-D3C, -D3M E62XT1-D3C, -D3M AW 90-110 [620-760] 78 [540] min. 17 20 ft.lbf @ -20 F [27 J @ -30 C]
E8XT5-K1C, -K1M E55XT5-K1C, -K1M AW 80-100 [550-690] 68 [470] min. 19 20 ft.lbf @ -40 F [27 J @ -40 C]
E7XT7-K2 E49XT7-K2 AW 70-90 [490-620] 58 [400] min. 20 20 ft.lbf @ -20 F [27 J @ -30 C]
E7XT4-K2 E49XT4-K2 AW 70-90 [490-620] 58 [400] min. 20 20 ft.lbf @ 0 F [27 J @ –20 C]
E7XT8-K2 E49XT8-K2 AW 70-90 [490-620] 58 [400] min. 20 20 ft.lbf @ -20 F [27 J @ -30 C]
E7XT11-K2 E49XT11-K2 AW 70-90 [490-620] 58 [400] min. 20 20 ft.lbf @ +32 F [27 J @ -0 C]
E8XT1-K2C, -K2M
E8XT5-K2C, -K2M
E55XT1-K2C, -K2M
E55XT5-K2C, -K2M
AW 80-100 [550-690] 68 [470] min. 19 20 ft.lbf @ -20 F [27 J @ -30 C]
E9XT1-K2C, -K2M E62XT1-K2C, -K2M AW 90-110 [620-760] 78 [540] min. 17 20 ft.lbf @ 0 F [27 J @ –20 C]
E9XT5-K2C, -K2M E62XT5-K2C, -K2M AW 90-110 [620-760] 78 [540] min. 17 20 ft.lbf @ -60 F [27 J @ -50 C]
E10XT1-K3C, -K3M E69XT1-K3C, -K3M AW 100-120 [690-830] 88 [610] min. 16 20 ft.lbf @ 0 F [27 J @ –20 C]
E10XT5-K3C, -K3M E69XT5-K3C, -K3M AW 100-120 [690-830] 88 [610] min. 16 20 ft.lbf @ -60 F [27 J @ -50 C]
E11XT1-K3C, -K3M E76XT1-K3C, -K3M AW 110-130 [760-900] 98 [680] min. 15 20 ft.lbf @ 0 F [27 J @ –20 C]
E11XT5-K3C, -K3M E76XT5-K3C, -K3M AW 110-130 [760-900] 98 [680] min. 15 20 ft.lbf @ -60 F [27 J @ -50 C]
E11XT1-K4C, -K4M E76XT1-K4C, -K4M AW 110-130 [760-900] 98 [680] min. 15 20 ft.lbf @ 0 F [27 J @ –20 C]
E11XT5-K4C, -K4M E76XT5-K4C, -K4M AW 110-130 [760-900] 98 [680] min. 15 20 ft.lbf @ -60 F [27 J @ -50 C]
E12XT5-K4C, -K4M E83XT5-K4C, -K4M AW 120-140 [830-970] 108 [745] min. 14 20 ft.lbf @ -60 F [27 J @ -50 C]
E12XT1-K5C, -K5M E83XT1-K5C, -K5M AW 120-140 [830-970] 108 [745] min. 14 Não Especificado
E7XT5-K6C, -K6M E49XT5-K6C, -K6M AW 70-90 [490-620] 58 [400] min. 20 20 ft.lbf @ -75 F [27 J @ -60 C]
E6XT8-K6 E43XT8-K6 AW 60-80 [430-550] 50 [340] min. 22 20 ft.lbf @ -20 F [27 J @ -30 C]
E7XT8-K6 E49XT8-K6 AW 70-90 [490-620] 58 [400] min. 20 20 ft.lbf sf @ -20 F [27 J @ -30 C]
(Continua)
AWS
D1.1/D1.1M:2010
ANEXO
V
ANEXO V
Classificação(ões) AWS a, b
Condiçãoc
Resistência à
Tração
ksi [MPa]
Limite de
Elasticidade
ksi [MPa]
%
Alongamento
Mínimo
Impacto Mínimo de Energia no Entalhe V de
Charpy.
A5.29 A5.29M
E10XT1-K7C, -K7M E69XT1-K7C, -K7M AW 100-120 [690-830] 88 [610] min. 16 20 ft.lbf @ -60 F [27 J @ -50 C]
E9XT8-K8 E62XT8-K8 AW 90-110 [620-760] 78 [540] min. 17 20 ft.lbf @ -20 F [27 J @ -30 C]
E10XT1-K9C, -K9M E69XT1-K9C, -K9M AW 100-120 [690-830]g
82-97 [560-670] 18 35 ft·lbf @ –60 F [27 J @ –50 C]
E8XT1-W2C, -W2M E55XT1-W2C, -W2M AW 80-100 [550-690] 68 [470] min. 19 20 ft·lbf @ -20 F [27 J @ -30 C]
EXXTX-G, g
-GC,g
–GM g
EXXTX-G, g
-GC,g
–GM g
A composição de depósito de solda, condição de teste (AW ou PWHT) e propriedades de impacto no entalhe em V de Charpy são
como acordado entre o fornecedor e comprador. Requisitos para o teste de tensão, posicionamento, sistema de escória e gás
protetor, se houver, estão em conformidade com aqueles indicados pelo dígitos usados.
EXXTG-Xg
EXXTG-Xg
O sistema de escória, gás protetor, se houver, condição de teste (AW ou PWHT) e propriedades de impacto no entalhe em V de
Charpy são como acordado entre o fornecedor e comprador. Requisitos para o teste de tensão, posicionamento e composição de
depósito de solda estão em conformidade com aqueles indicados pelo dígitos usados.
EXXTG-Gg
EXXTG-Gg
O sistema de escória, gás protetor, se houver, condição de teste (AW ou PWHT), propriedades de impacto no entalhe em V de
Charpy e composição de depósito de solda são como acordado entre o fornecedor e comprador. Requisitos para o teste de tensão e
posicionamento estão em conformidade com aqueles indicados pelo dígitos usados.
a
Os “Xs” na classificação real serão substituídos pelos designadores apropriados.
b
A colocação de um “G” na posição de um designador indica que aquelas propriedades foram acordadas entre o fornecedor e o comprador.
c
AW = Soldagem em Bruto. PWHT = Tratado com aquecimento pós-solda.
d
Esses eletrodos são presentemente classificados como E502TX-X ou E505TX-X em AWS A5.22-95. Com a próxima revisão de A5.22 eles serão removidos e exclusivamente listados nessa
especificação.
e
Temperaturas PWHT que excedam 1150 F [620 C] irão diminuir as propriedades de impacto do entalhe em V de Charpy.
f
Para essa classificação (E10XT1-K9C, -K9M [E69XT1-K9C, -K9M]) a faixa de resistência à tração mostrada não é um requisito. É uma aproximação.
g
Os requisitos de resistência à tração, limite de escoamento, e % de alongamento para eletrodos EXXTX-G, -GC, -GM [EXXTX-G, -GC, -GM]; EXXTG-X e EXXTG-G [EXXTG-X e EXXXTG-G]
são como mostrado nessa tabela para outras classificações de eletrodo (não incluindo as classificações E10XT1-K9C, -K9M [E69XT1-K9C, -K9M] ) tendo o mesmo designador de resistência à tração.
ANEXO
V
AWS
D1.1/D1.1M:2010
AWS A5.29/A5.29M, Especificação para Eletrodos de Aço de Carbono
para Soldagem a Arco com Arame Tubular
412
Essa página está intencionalmente em branco.
AWS D1.1/D1.1M:2010
413
Comentário sobre
Código de Soldagem
Estrutural-Aço
17ª Edição
Preparado pelo
Comitê de Soldagem Estrutural D.1 da AWS
Sob a Direção do
Comitê de Atividades Técnicas da AWS
Aprovado pela
Diretoria da AWS
AWS D1.1/D1.1M:2010
414
Essa página está intencionalmente em branco.
AWS D1.1/D1.1M:2010
415
Prefácio
Esse prefácio não é parte do Comentário de AWS Dl.l/D1.1M:2010, Código de Soldagem Estrutural-Aço, mas foi
incluído apenas para propósito de informação.
Esse comentário sobre AWS Dl.l/D1.1M:2010 foi preparado para gerar melhor compreensão na aplicação do
código a soldagem em construção em aço.
Como o código é escrito na forma de uma especificação, não pode apresentar material de apoio ou discutir a
intenção do Comitê de Soldagem Estrutural; é a função desse comentário atender a essa necessidade.
Sugestões para aplicação assim como esclarecimento de requisitos do código são oferecidos com ênfase específica
em seções novas ou revisadas que podem ser menos familiares ao usuário.
Desde a publicação de primeira edição do código, a natureza das inquirições direcionadas à Sociedade Americana
de Soldagem e ao Comitê de Soldagem Estrutural indicou que há alguns requisitos no código que são difíceis de
entender ou não suficientemente específicos, e outros que parecem ser excessivamente conservadores.
Deveria ser reconhecido que a premissa fundamental do código é fornecer estipulações gerais aplicáveis a qualquer
situação e deixar latitude suficiente para o exercício de julgamento de engenharia.
Outro ponto a ser reconhecido é que o código representa a experiência coletiva do comitê e enquanto algumas
provisões podem parecer excessivamente conservadoras, elas foram baseadas em boas práticas de engenharia.
O comitê, portanto, acredita que um comentário é o meio mais adequado de fornecer esclarecimento assim como
interpretação apropriada de muitos dos requisitos do código. Obviamente, o tamanho do comentário impões
algumas limitações com respeito à extensão da cobertura.
Esse comentário não tem a intenção de fornecer um histórico do desenvolvimento do código, nem tem a intenção de
fornecer um resumo detalhado dos estudos e dados de pesquisas revisados pelo comitê ao formular as provisões do
código.
Geralmente, o código não trata tais considerações de projeto como carga e a computação de tensões para o
propósito de proporcionalizar os membros que carregam cargas da estrutura e suas conexões. É presumido que tais
considerações são abordadas em outro lugar, em código de obras geral, especificação de ponte ou documento
similar.
Como uma exceção, o código fornece tensões permissíveis em soldas, provisões de fadiga em estruturas
ciclicamente carregadas e estruturas tubulares e limitações de resistência para conexões tubulares. Essas provisões
são relacionadas a propriedades particulares de conexões soldadas.
O Comitê esforçou-se para produzir um documento útil adequado em linguagem, forma e cobertura para soldagem
em construção de aço. O código fornece um meio de estabelecer padrões de soldagem para uso em projeto e
construção pelo Proprietário ou o representante designado pelo Proprietário. O código incorpora provisões para
regulação de soldagem que são consideradas necessárias para segurança pública.
O comitê recomenda que o Proprietário ou representante do Proprietário sejam guiados por esse comentário na
aplicação do código à estrutura soldada. O comentário não tem a intenção de complementar requisitos do código,
mas apenas de fornecer um documento útil para interpretação e aplicação do código; nenhuma de suas provisões é
vinculada.
É intenção do Comitê de Soldagem Estrutural revisar o comentário em uma base regular de forma que comentários
sobre alterações no código possam ser prontamente fornecidos ao usuário. Dessa forma, o comentário será sempre
atualizado com a edição do Código de Soldagem Estrutural-Aço à qual está ligado.
Alterações no comentário foram indicadas por sublinhamento. Alterações em ilustrações estão indicadas por linhas
verticais na margem.
AWS D1.1/D1.1M:2010
416
Esta página está intencionalmente em branco
AWS D1.1/D1.1M:2010
417
Comentário sobre
Código de Soldagem Estrutural-Aço
C-1. Requisitos Gerais
Usuários desse código podem notar que não há um Anexo C. Isso foi feito intencionalmente para evitar qualquer confusão
com referências de comentário que usam "C-" para identificar texto, tabelas e figuras que são parte do comentário. A
identificação do comentário com relação ao texto do código é relativamente direta. Se há um comentário sobre texto do
código, por exemplo, subcláusula 4.5.1 do código, você pode identificá-lo na Cláusula C-4 do comentário rotulado C-
4.5.1. O "C-" indica que é comentário, o 4.5.1 identifica a parte do código à qual o comentário se refere. Da mesma forma,
C-Tabela 6.1 indica um comentário sobre a Tabela 6.1 e C-Figura 5.4 indica comentário sobre a Figura 5.4. Se uma
subcláusula, tabela ou figura não tem um comentário associado a ela, então não haverá seção rotulada no comentário para
aquele componente do código. É por isso que ao ler o comentário a numeração pode parecer errática e parece que estão
faltando algumas seções. Por exemplo, você pode ler as três seções seguintes do comentário em ordem: C-3.1.1, C-3.1.2,
C-3.1.4. Pode notar que a sequência C-3.1.3 está faltando. Não é um erro tipográfico mas sim uma indicação de que não
há comentários sobre a cláusula 3.1.3 desse código. O comentário tem suas próprias figuras e tabelas. Elas são
identificadas de uma maneira ligeiramente diferente, é necessário ter cuidado para não confundi-las com comentários
sobre as figuras e tabelas do código. Por exemplo, a primeira tabela da Cláusula C-6 que tenha comentário será rotulada
"Tabela C-6.1." Note que o "c-" não vem antes de "Tabela", mas ao invés disso vem depois. "C-Tabela 6.1" é um
comentário sobre a Tabela 6.1 do código; "Tabela C-6.1" é a primeira tabela de comentário na Cláusula C-6. O mesmo é
verdade para o rótulo de figuras, por exemplo, "C-Figura 5.1" e "Figura C-5.1".
C-1.1 Âmbito
O Código de Soldagem Estrutural-Aço, doravante
denominado como código, fornece requisitos de
soldagem para a construção de estruturas de aço. Ele
tem a intenção de ser complementar a qualquer código
ou especificação para projeto e construção de estruturas
de aço.
Quando usando o código para outras estruturas,
Proprietários, arquitetos e Engenheiros deveriam
reconhecer que nem todas as provisões podem ser
aplicáveis ou adequadas a sua estrutura particular. No
entanto, quaisquer modificações no código consideradas
necessárias por essas autoridades deveriam ser
claramente mencionadas no acordo contratual entre o
Proprietário e o Empreiteiro.
C-1.3 Definições
C-1.3.1 Engenheiro. O código não define o Engenheiro
em termos de educação, registro profissional, licença
profissional, área de especialização ou outro critério
similar. O código não fornece um teste da competência
ou habilidade do Engenheiro. No entanto, a presunção
em todo o código no que diz respeito às
responsabilidades e autoridades atribuídas ao
Engenheiro é de que o indivíduo é competente e capaz
de executar essas responsabilidades. Códigos de obras
aplicáveis podem ter requisitos a serem atendidos pelo
Engenheiro. Esses requisitos podem incluir, entre
outros, conformidade com leis e regulamentos de
jurisdição local governando a prática da Engenharia.
C-1.3.3.1 Inspetor do Empreiteiro. Em edições
anteriores desse código, o termo "inspetor de
fabricação-ereção" foi usado para designar o indivíduo
que supervisiona o trabalho do Empreiteiro.
Responsabilidades específicas do Inspetor do
Empreiteiro estão definidas em 6.1. Em algumas
indústrias, isso pode ser designado como "controle de
qualidade" ou "Inspeção de QC".
C-1.3.3.2 Inspetor de Verificação. As atribuições
do Inspetor de Verificação são identificadas pelo
Engenheiro. O Engenheiro tem a responsabilidade de
determinar se a inspeção de verificação é ou não
requerida para um projeto específico e, quando
requerido, definir as responsabilidades daquele Inspetor.
Em algumas indústrias, esse tipo de inspeção é chamado
"cerificação de qualidade" ou "inspeção de QA".
Códigos de obras podem especificar requisitos de
inspeção de verificação. O Engenheiro deveria então
identificar tais requisitos em documentos de contrato.
C-1.3.3.3 Inspetor Não Modificado. Quando a
palavra "Inspetor" é usada sem o termo modificador "do
Empreiteiro" ou "de Verificação", a provisão é
C-1. REQUISITOS GERAIS AWS D1.1/D1.1M:2010
418
igualmente aplicável a ambos os tipos de Inspetores
(ver 6.1.4 como exemplo).
C-1.3.4 OEM (Fabricante do Equipamento
Original). As principais atividades e aplicações
governadas por esse código envolvem tipicamente
entidades separadas, que se encaixem nas categorias
amplas de Empreiteiro e Engenheiro. Para algumas
aplicações desse código, uma entidade funciona tanto
como Engenheiro quanto como Empreiteiro. Nesse
código, isso é designado como um Fabricante de
Equipamento Original (OEM). Exemplos incluiriam
sistemas de construção de metal como plataformas e
equipamentos deslizantes, sistemas de armazenamento
de material, torres de transmissão, postes de luz e
estruturas de sinalização. Para essas situações, os
documentos de contrato deveriam definir como lidar
comas várias responsabilidades. Por definição, o
código separa as funções de Engenheiro daquelas de
Empreiteiro, e ainda assim essas estão fundidas nas
aplicações OEM. Muitos arranjos possíveis existem,
mas as seguintes categorias gerais capturam muitos
exemplos de aplicações OEM.
 OEM 1-O OEM assume responsabilidade por
"produtos completos (turnkey)," e o Proprietário
não tem envolvimento em assuntos de inspeção ou
engenharia.
 OEM 2-Um produto completo (turnkey) é entregue,
mas o Proprietário fornece seu próprio Inspetor de
verificação que relata suas descobertas ao
Proprietário.
 OEM 3-As atribuições do Engenheiro, como
definido pelo código, são relacionadas tanto ao
OEM como ao Engenheiro do Proprietário.
Para atender cada uma das situações antecedentes,
exemplos de linguagem contratual possível estão
inclusos abaixo. Esses deveriam ser revisados para a
certificação de que são aplicáveis à situação específica.
Exemplo de Linguagem para OEM 1:
"D.1.1 deve ser usado. O Engenheiro do Empreiteiro
deve assumir asresponsabilidades do Engenheiro
conforme definido em 1.3.1. Desvios dos requisitos do
código como descrito em 1.4.1 não devem ser
permitidos.
Exemplo de Linguagem para OEM 2:
"D.1.1 deve ser usado. O Engenheiro do Empreiteiro
deve assumir as responsabilidades do Engenheiro como
definido em 1.3.1, exceto todas as referências ao
"Engenheiro" na Cláusula 6, que devem significar o
"Proprietário". A verificação de inspeção deve ser como
determinado pelo Proprietário, e o Inspetor de
Verificação deve relatar os resultados ao Proprietário.
Além disso, decisões tomadas pelo Engenheiro do
Empreiteiro que requeiram alterações no código como
descrito por 1.4.1 devem ser submetidas ao Proprietário
para aprovação".
Exemplo de Linguagem para OEM 3:
Nenhuma linguagem específica é fornecida aqui porque
o número de permutações é muito grande. O usuário é
encorajado a olhar para cada referência ao Engenheiro e
resolver como lidar com cada situação. Como exemplo,
os conteúdos das Cláusulas 1, 2, e 6 pode ser atribuído
ao Engenheiro do Proprietário e as responsabilidades
das Cláusulas 3, 4, 5 e 7 atribuídas ao Engenheiro do
Empreiteiro.
C-1.3.6.2 Deveria. As provisões que contêm
"deveria" são de recomendação (ver 5.29, por exemplo:
aberturas de arco deveriam ser evitadas, mas não são
proibidas). No entanto, se estão presentes, "devem"
(isto é, é requerido) ser removidas.
Certas provisões do código são opções que são dadas ao
Empreiteiro (ver 5.27 como um exemplo em que
martelamento é permitido (pode), mas não requerido
(deve) em camadas intermediárias de solda).
C-1.3.6.3 Pode. Algumas provisões do código não
são obrigatórias a menos que o Engenheiro as invoque
em documentos de contrato.
C-1.4 Responsabilidades
C-1.4.1 Responsabilidades do Engenheiro O
Engenheiro é responsável quando da preparação do
contrato por fornecer recomendações ao Proprietário ou
autoridade contratual com respeito à adequação do
código para atender os requisitos particulares de uma
estrutura específica. O Engenheiro pode alterar
quaisquer requisitos do código, mas a base para tais
alterações deveria ser bem documentada e levar em
consideração a adequação para serviço usando
experiência passada, evidência experimental ou análise
de engenharia, considerando tipo de material, efeitos de
carga e fatores ambientais.
O Engenheiro pode recomendar, de tempos em tempos
durante o curso do projeto, alterações adicionais às
provisões do código para o bem do projeto. Tais
alterações deveriam ser documentadas. O efeito sobre a
relação contratual deveria ser resolvido entre as partes
envolvidas.
Exemplos comuns de modificações de subscrição ao
código envolvidas incluem resolução de dificuldades de
projeto não previstas, manejo de não conformidades
menores e lidar com assuntos específicos de violação do
código. Por exemplo, a aceitação de uma não
conformidade menor com a devida consideração aos
requisitos de serviço pode ser mais desejável para o
projeto em geral do que ordenar um reparo que
resultaria em conformidade total com o código, mas em
um produto final menos desejável.
A premissa fundamental do código é fornecer
estipulações aplicáveis à maioria das situações.
Critérios de aceitação para soldas de produção
diferentes daqueles especificados no código podem ser
usados, mas deve haver uma base para tal critério de
aceitação alternativo, como uma experiência passada,
evidência experimental ou análise de engenharia.
C-1. REQUISITOS GERAIS AWS D1.1/D1.1M:2010
419
Após o contrato ser homologado, o Engenheiro pode
alterar requisitos no código, mas as alterações deveriam
ser documentadas e acordadas entre as partes
envolvidas. O Engenheiro não pode modificar ou alterar
qualquer provisão do código unilateralmente após os
contratos serem homologados sem potencialmente criar
conflito com os termos do contrato. Esses tipos de
modificações deveriam ser acordados mutualmente
entre as partes envolvidas para atender satisfatoriamente
circunstâncias imprevistas.
É requerido que o Engenheiro determine a adequação
de um detalhe particular de junta para a montagem
soldada específica. Detalhes de junta pré-qualificados,
assim como detalhes particulares de junta que podem
ser qualificados por teste podem não ser adequados para
todas as condições de carga ou condições de restrição.
Deveriam ser feitas considerações às propriedades
através-espessura de aços, possibilidade de ruptura
lamelar, tamanhos e proporções de membros sendo
anexados e outros fatores.
C-1.4.1(1) Certas provisões do código são obrigatórias
apenas quando especificado pelo Engenheiro. Isso é
requerido pelo código que seja feito em documentos de
contrato.
C-1.4.1(2) O Engenheiro tem a autoridade e a
responsabilidade de determinar quando uma NDT (se
houver) será especificada para um projeto específico. O
Engenheiro deveria considerar as consequências de
falha, a aplicabilidade do processo de inspeção para a
solda específica envolvida e reconhecer limitações dos
métodos NDT especificados e a extensão dessa NDT.
C-1.4.1(3) A inspeção de verificação não é requerida
pelo código e, se usada, é requerido pelo código que
seja especificada pelo Engenheiro (ver 6.1.2.2). O
Engenheiro podem escolher não ter inspeção de
verificação, ter inspeção de verificação de apenas parte
da fabricação ou inspeção de verificação que substitua
completamente a inspeção do Empreiteiro. No entanto,
quando escolhe eliminar a inspeção do Empreiteiro, o
Engenheiro deveria estar ciente de que há um grande
número de responsabilidades atribuídas ao Inspetor do
Empreiteiro que incluem atividades que podem não ser
tradicionalmente consideradas como parte da inspeção
de verificação (ver 6.1.2.1, 6.2, 6.3, 6.5 e 6.9). Essas
atividades são importantes para controlar qualidade de
solda. Não deve ser presumido que NDT, não importa
sua extensão, irá eliminar a necessidade de controle
dessas atividades.
C-1.4.1(5) A tenacidade ao entalhe para metal de solda,
metal base e/ou HAZs não é determinada por esse
código. Tais requisitos, quando necessário, são
requeridos pelo código a serem especificados nos
documentos de contrato.
C-1.4.1(6) O código contém provisões para aplicações
não tubulares carregadas tanto estaticamente quanto
ciclicamente. Os critérios para tais fabricações diferem,
e como tal, as condições de carga e forma de aço
aplicável são requeridas pelo código a serem
especificadas nos documentos de contrato.
C-1.4.1(7) O Engenheiro é responsável por especificar
requisitos adicionais de fabricação e inspeção que não
são necessariamente tratados no código. Esse requisitos
adicionais podem ser necessários por causa de
condições tais como: temperaturas extremas de
operação (quente ou fria) da estrutura, requisitos únicos
de fabricação de material, etc.
C-1.4.1(8) Para aplicações OEM (ver 1.3.4), algumas
das responsabilidades do Engenheiro são realizadas
pelo Empreiteiro. O código requer que documentos de
contrato definam essas responsabilidades (ver C-1.3.4).
C-1.4.2 Responsabilidades do Empreiteiro. A lista
abreviada em 1.4.2 destaca áreas principais das
responsabilidades do Empreiteiro, e não é completa.
Responsabilidades do Empreiteiro estão contidas em
todo o código.
C-1.4.3 Inspeção de Verificação. A lista abreviada em
1.4.3 destaca áreas principais de responsabilidade dos
vários inspetores, e não é completa. A Cláusula 6
destaca responsabilidades específicas.
C-1.8 Unidades de Medida Padrão
D1.1 tem um sistema de duas
unidades:
Unidades métricas Convencionais dos EUA e SI
(métrica). Por todo o código, o usuário encontrará
dimensões em Unidades Convencionais dos EUA
seguidas por Unidades SI (métricas) em colchetes []. As
Unidades SI são conversões suaves das Unidades
Convencionais dos EUA; isto é, cada valor de conversão
"suave" foi arredondado de um valor SI usando uma
conversão que é próxima ao invés de um valor racional
baseado em um fator de conversão. Por exemplo, a
conversão suave de 1/2 in é 12 mm, e a conversão rígida
é 12,7 mm. De forma similar, a conversão suave para
cada polegada é 25 mm e a conversão rígida é 25,4 mm.
É inapropriado escolher entre tolerâncias Convencionais
dos EUA e SI; cada sistema de unidades deveria ser
usado como um todo, e o sistema usado deveria ser o
mesmo usado nos desenhos de oficina. Em termos de
WPSs, fabricantes não deveriam ser requeridos a
executar novamente PQRs para uma alteração em
unidades. No entanto, WPSs deveriam ser esboçadas nas
unidades apropriadas.
C-1. REQUISITOS GERAIS AWS D1.1/D1.1M:2010
420
Esta página está intencionalmente em branco
AWS D1.1/D1.1M:2010
421
C-2. Projeto de Conexões Soldadas
C-2.3 Planos e Especificações de
Contrato
C-2.3.2 Requisitos de Tenacidade ao Entalhe.
Tenacidade ao entalhe é uma propriedade material que
fornece uma medida de sua sensibilidade a fratura
quebradiça. O teste CVN é o método mais comum de
medir tenacidade ao entalhe. Outros testes estão
disponíveis e podem ser mais confiáveis, mas são
também mais complexos e caros. Medidas mais
precisas de tenacidade não são justificáveis a menos que
métodos mecânicos de fratura sejam usados no projeto.
A demanda por tenacidade depende do tipo de carga,
taxa de aplicação da carga, temperatura e outros fatores.
Redundância e as consequências de fratura também
podem ser consideradas para determinar requisitos de
teste CVN para uma junta soldada. Muitas aplicações
não requerem uma medida de tenacidade ao entalhe. Em
aplicações em que um valor mínimo de teste CVN é
requerido, a especificação de uma classificação de
metal de adição que inclua valores de teste CVN pode
ser suficiente. Muitas classificações de metal de adição
estão disponíveis que fornecem critérios de teste CVN.
A maioria dos metais de adição usados em aplicações
estruturais de campo não é testada para valores de teste
CVN. Dos metais de adição que são testados para
valores de teste CVN e usados em aplicações
estruturais, o mais comum atende 20 ft.lbs a -20º ou 0ºF
[27 J a – 29º ou -l8°C]. Em casos mais severos, WPSs
podem ser qualificadas para atender valores de teste
CVN. Deveria ser reconhecido que os critérios de teste
CVN em metais de adição ou em uma qualificação
WPS relacionam-se à uma suscetibilidade de material a
fratura quebradiça mas não é uma medida precisa da
propriedade material em uma junta de produção. O
objetivo da maioria dos requisitos de teste CVN é
fornecer alguma garantia de que o material não está em
sua prateleira mais baixa de tenacidade ao entalhe na
temperatura de serviço da estrutura.
Formas e placas estruturais foram pesquisadas e teste
CVN resultou em valores de 15 ft·lbs [20 J] ou maiores
a 40º F [4º C]. Essas pesquisas foram conduzidas a
pedido de produtores de fábrica para mostrar que teste
CVN de metal base não era necessário para a maioria
das aplicações de obras (ver Referência 30). As
subcláusulas 4.8.1, C-2.5.2.2, C-4.13.4.4, e Cláusula 4,
Parte D contêm informações sobre valores de teste
CVN (ver também Fracture and Fatigue Control in
Structures, Barsom e Rolfe).
C-2.3.4 Tamanho e Comprimento de Solda. O
Engenheiro preparando desenhos de projeto do contrato
não pode especificar a profundidade de chanfro "S" sem
saber o processo de soldagem e a posição de soldagem.
O código é explícito ao estipular que apenas o tamanho
de solda "(E)" será especificado nos desenhos de
projeto para soldas em chanfro PJP (ver 2.3.5.1). Isso
permite que o Empreiteiro produza o tamanho de solda
atribuindo uma profundidade de preparação para o
chanfro mostrado nos desenhos de oficina em relação à
escolha do Empreiteiro de processo de soldagem e
posição de soldagem.
A penetração de raiz irá geralmente depender do ângulo
na raiz do chanfro em combinação com a abertura de
raiz, a posição de soldagem e o processo de soldagem.
Para juntas usando bisel e soldas em chanfro em V-,
esses fatores determinam a relação entre a profundidade
de preparação e o tamanho de solda para soldas em
chanfro PJP pré-qualificadas.
A resistência de soldas em filete depende do tamanho
de garganta; no entanto, o tamanho de perna de soldas
em filete é a dimensão mais útil e mensurável para
execução do trabalho. Nos documentos de contrato e
desenhos de oficina, quando as partes anexadas se
encontram em um ângulo entre 80º e 100º, o tamanho
efetivo é tomado como a dimensão de garganta de uma
solda de filete de 90º, e é designado nos documentos de
contrato e nos desenhos de oficina por tamanho de
perna.
No lado do ângulo agudo de juntas em T-
significativamente oblíquas [ver Figura 3.11(A), (B) e
(C)], a relação entre tamanho de perna e garganta
efetiva é complexa. Quando as partes se encontram em
ângulos menores que 100º, os documentos de contrato
mostram a garganta efetiva requerida para fornecer
condições de projeto, e desenhos de oficina mostram
tamanho de perna requerido para fornecer garganta
efetiva especificada.
Quando o ângulo agudo é entre 30 e 60º, o tamanho
efetivo de solda depende da redução de perda Z [ver
Figura 3.11(D)], que depende da posição e processo de
soldagem. Especificar apenas o tamanho de garganta
efetiva requerido para satisfazer condições de projeto
nos documentos de contrato permite que o fabricante,
usando processos de soldagem adequados a seu
C-2. PROJETO DE CONEXÕES SOLDADAS AWS D1.1/D1.1M:2010
422
equipamento e prática, indique sua intenção e instruções
por WPSs apropriadas, e símbolos nos desenhos de
oficina.
C-2.3.5.4 Dimensões Pré-qualificadas de Detalhe.
O histórico e a base para pré-qualificação de juntas
estão explicados em C-3.2.1. Projetistas e detalhadores
deveriam observar que a pré-qualificação de geometrias
de junta é baseada em condições provadas satisfatórias
de forma, liberação, posição de soldagem e acesso a
uma junta entre elementos de placa para um soldador
qualificado depositar bom metal de solda bem fundido
ao metal base. Outras considerações de projeto
importantes para a adequação de uma junta particular
para uma aplicação particular não são parte do status
pré-qualificado. Tais considerações incluem, entre
outras:
(1) o efeito de restrição imposto por rigidez de
metal base conectado em contração de metal de solda,
(2) o potencial de causar ruptura lamelar por
grandes depósitos de solda sob condições restritas em
metal base tensionado na direção através-espessura,
(3) limitações no acesso do soldador à junta para
posicionamento e manipulação apropriados do eletrodo
impostas por metal base3 próximo mas não parte da
junta,
(4) o potencial para estado de tensão biaxial ou
triaxial de tensão em soldas de intersecção,
(5) limitações em acesso para permitir inspeção UT
ou RT confiável,
(6) efeito de tensões residuais de tração a partir de
retração de solda,
(7) efeito de soldas maiores que o necessário em
distorção.
C-2.4 Áreas Efetivas
C-2.4.1.4 Tamanho Efetivo de Soldas em Chanfro
Curvado. Seções estruturais retangulares ocas são
formadas de uma maneira que pode não resultar em um
ângulo de 90º. A pesquisa apoiando a Tabela 2.1
considera essa prática e 2t foi considerado aceitável.
C-2.4.2.5 Comprimento Máximo Efetivo. Quando
soldas de filete longitudinais paralelas à tensão são
usadas para transmitir a carga para a extremidade de um
membro carregado axialmente, as soldas são chamadas
"carregadas na extremidade". Exemplos típicos de tais
soldas incluiriam, entre outros, juntas sobrepostas
soldadas longitudinalmente na extremidade de membros
axialmente carregados, soldas anexando reforços de
rolamento, soldas anexando reforços transversais às
braçadeiras de traves projetadas em base de ação de
tensão de campo e casos similares. Exemplos típicos de
soldas de filete carregadas longitudinalmente que não
são consideradas carregadas na extremidade incluem,
entre outros, soldas que conectam placas ou formas para
formar uma seção transversal construída na qual a força
de cisalhamento é aplicada a cada incremento de
comprimento de tensão de solda dependendo da
distribuição de carga de cisalhamento ao longo do
comprimento do membro, soldas anexando ângulos de
conexão de braçadeira de viga e placas de cisalhamento
porque o fluxo de força de cisalhamento a partir da
braçadeira de trave ou viga para a solda é
essencialmente uniforme em todo o comprimento da
solda, isto é, a solda não é carregada na extremidade a
despeito do fato de que é carregada paralela ao eixo da
solda. Nem o fator de redução se aplica a soldas
anexando reforços a braçadeiras projetadas na base de
cisalhamento de viga convencional porque os reforços e
soldas não são sujeitos a tensão axial calculada mas
servem meramente para manter a braçadeira plana.
A distribuição de tensão ao longo do comprimento de
soldas em filete carregadas na extremidade está longe
de uniforme e depende das relações complexas entre a
firmeza de solda de filete longitudinal relativa à firmeza
dos metais base conectados. Além de um certo
comprimento, é não conservador assumir que a tensão
média sobre o comprimento total da solda pode ser
tomado como igual à tensão completa permissível. A
experiência tem mostrado que quando o comprimento
da solda é igual a aproximadamente 100 vezes o
tamanho de solda ou menos, é razoável assumir que o
comprimento efetivo é igual ao comprimento real. Para
comprimentos de solda maiores que 100 vezes o
tamanho de solda, o comprimento efetivo deveria ser
considerado menor que o comprimento real. O
coeficiente de redução, β, fornecido em 2.4.2.5 é o
equivalente (em Unidades e terminologia dos EUA) do
Eurocode 3, que é uma aproximação simplificada de
fórmulas exponenciais desenvolvidas por testes e
estudos de elemento finito realizados na Europa por
muitos anos. Os critérios são baseados em consideração
combinada de resistência de ruptura para soldas de
filete com tamanho de perna menor que 1/4 in [6 mm] e
em julgamento baseado no limite de servicibilidade de
deslocamento ligeiramente menor que 1/32 in [1 mm]
na extremidade da solda para soldas com tamanho de
perna de 1/4 in [6 mm] e maior. Matematicamente, a
multiplicação do comprimento real pelo fator leva a
uma expressão que implica que o comprimento efetivo
atinja um máximo quando o comprimento real é
aproximadamente 300 vezes o tamanho de perna;
portanto o comprimento máximo efetivo de uma solda
de filete carregada na extremidade é considerado como
180 vezes o tamanho de perna de solda.
C-2.6 Tensões
C-2.6.1 Tensões Calculadas. É pretendido que as
tensões calculadas a serem comparadas com as tensões
permissíveis sejam tensões nominais determinadas por
métodos de análise apropriados e não tensões de "ponto
de aquecimento" que podem ser determinadas por
análise de elemento finito usando uma malha mais fina
que aproximadamente um pé. Algumas especificações
de projeto aplicáveis invocadas requerem que certas
juntas sejam projetadas para fornecer, não apenas as
forças calculadas devido a cargas aplicadas, mas
também uma certa percentagem mínima da resistência
C-2. PROJETO DE CONEXÕES SOLDADAS AWS D1.1/D1.1M:2010
423
do membro, a despeito da magnitude das forças
aplicadas à junta. Exemplos de tais requisitos serão
achados nas Especificações AISC.
C-2.6.2 Tensões Calculadas devido à Excentricidade.
Testes têm mostrado que equilibrar soldas ao redor do
eixo neutro de um ângulo único ou membro de ângulo
duplo ou membros similares não aumenta a capacidade
de carga da conexão. Portanto, soldas não equilibradas
são permitidas. Deve ser notado que soldagens de
acabamento não são necessárias, pois ruptura não é um
problema (ver Figura C-2.1).
C-2.6.4 Tensões de Metal de Solda Permissíveis. A
filosofia subjacente às provisões do código para tensões
em soldas pode ser descrita pelos seguintes princípios:
(1) O metal de solda em soldas em chanfro CJP
sujeitas a tensões normais à área efetiva deveria ter
propriedades mecênicas proximamente comparáveis
àquelas do metal base. Isso, em efeito, fornece ligações
soldadas quase homogêneas de seção transversal não
reduzida de forma que tensões usadas para
proporcionalizar as partes componentes podem ser
usadas no e adjacentes ao metal de solda depositado.
Para tensões resultantes de outras direções de carga,
metal de solda de resistência menor pode ser usado,
contanto que os requisitos de resistência sejam
atendidos.
(2) Para soldas de filete e soldas em chanfro PJP, o
projetista tem uma flexibilidade maior na escolha de
propriedades mecânicas de metal de solda comparado
com aqueles componentes que estão sendo anexados.
Na maioria dos casos, a força a ser transferida por essas
soldas é menor que a capacidade dos componentes.
Tais soldas são proporcionais à força a ser transferida.
Isso pode ser alcançado com metal de solda de
resistência mais baixa que o metal base, contanto que a
área de garganta seja adequada para suportar a força
dada. Por causa da maior ductilidade do metal de solda
de resistência mais baixa, essa escolha pode ser
preferível.
Uma tensão de trabalho igual a 0,3 vezes a resistência à
tração do metal de adição, como designado pela
classificação de eletrodo, aplicada à garganta de uma
solda de filete foi mostrada por testes (Referência 31)
para fornecer um fator de segurança numa faixa que vai
de 2,2 para forças de cisalhamento paralelas ao eixo
longitudinal da solda, a 4,6 para forças normais ao eixo
sob serviço de carga. Essa é a base para os valores
dados na Tabela 2.3.
(3) As tensões na garganta efetiva de soldas de
filete são sempre consideradas de cisalhamento. Embora
a resistência a falha de soldas de filete carregadas
perpendicularmente a seu eixo longitudinal seja maior
que aquela de soldas de filete paralelas a esse eixo,
capacidades de carga maiores não foram atribuídas na
Tabela 2.3 para soldas de filete carregadas de forma
normal a seu eixo longitudinal.
Critérios alternativos permitindo tensões permissíveis
mais altas para soldas de filete carregadas obliquamente
ao eixo longitudinal da solda são fornecidos em 2.6.4.2.
(4) A capacidade de carga de qualquer solda é
determinada pela mais baixa das capacidades calculadas
em cada plano de transferência de tensão. Esses planos
para cisalhamento em soldas de filete e em chanfro são
ilustrados na Figura C-2.2.
(a) Plano 1-1, no qual a capacidade pode ser
governada pela tensão de cisalhamento permissível para
material "A".
(b) Plano 2-2, no qual a capacidade é governada
pela tensão de cisalhamento permissível do metal de
solda.
(c) Plano 3-3, no qual a capacidade pode ser
governada pela tensão de cisalhamento permissível para
material "B".
C-2.6.4.2 Tensão de Solda de Filete Permissível
Alternativa. Há muito foi reconhecido que o
desempenho de resistência e deformação de elementos
de solda de filete depende do ângulo que a força faz
com o eixo do elemento de solda. Soldas de filete
carregadas transversalmente têm resistência
aproximadamente 50% maior que de soldas carregadas
longitudinalmente. De modo inverso, é bem conhecido
que soldas de filete carregadas transversalmente têm
menos capacidade de distorção antes da fratura que
soldas de filete carregadas longitudinalmente. Em
seguida aos testes de Higgins e Preece, o Welding
Journal Research Supplement, de Outubro de 1968,
sobre os interesses de simplicidade e porque os métodos
para lidar com interação entre casos de carga transversal
e longitudinal não estavam disponíveis, a tensão
permissível em soldas de filete no código foi limitada a
0,3 FEXX.
Esse valor é baseado nos resultados de teste de
resistência mais baixos para soldas carregadas
longitudinalmente com o fator de segurança contra
ruptura de aproximadamente 2,2 a 2,7. Os mesmos
critérios básicos ainda se aplicam; no entanto o código
agora fornece a opção de uma tensão permissível mais
alta para soldas de filete baseadas no cálculo de um
valor específico para o ângulo de carga.
A resistência de ruptura de cisalhamento de um único
elemento de solda de filete em vários ângulos de
aplicação de carga foi originalmente obtida das relações
de carga-deformação de Butler (1972) para eletrodos
E60. Curvas para eletrodos E70 foram obtidas por Lesik
(1990). O desempenho de resistência e deformação de
soldas depende do ângulo que a força elemental
resultante faz com o eixo do elemento de solda (ver
Figura C-2.3). A relação de deformação de carga real
para soldas de filete tomada de Lesik é mostrada na
Figura C-2.4.
A seguir está a fórmula para tensão de ruptura de solda,
FV
FV = 0,852 (1,0 + 0,50 sin.1,5
-θ) FEXX
Porque a tensão permissível é limitada a 0,3 FEXX para
soldas longitudinalmente carregadas (θ=0º), os
resultados de teste indicam que fórmulas em 2.6.4.2 e
C-2. PROJETO DE CONEXÕES SOLDADAS AWS D1.1/D1.1M:2010
424
2.6.4.3 fornecem um fator de segurança maior que o
valor comumente aceitado de 2.
C-2.6.4.3 Centro Instantâneo de Rotação. Quando
grupos de solda são carregados em cisalhamento por
uma carga externa que não age através do centro de
gravidade do grupo, a carga é excêntrica e tenderá a
causar rotação e translação relativas entre as partes
conectadas pelas soldas. O ponto sobre o qual a rotação
tende a acontecer é chamado centro instantâneo de
rotação. Sua localização depende da excentricidade da
carga, geometria do grupo de solda e deformação da
solda em diferentes ângulos da força elemental
resultante relativa ao eixo da solda. A força de
resistência individual de cada unidade de elemento de
solda pode pode presumivelmente agir em uma linha
perpendicular a um raio passando através do centro
instantâneo de rotação e do local dos elementos (ver
Figura C-2.3).
A resistência total de todos os elementos de solda
combina para resistir à carga excêntrica, e quando o
local correto do centro instantâneo de rotação foi
selecionado, as equações no plano de estática
(Σx,Σ ,ΣM) serão satisfeitas. Uma explicação completa
do procedimento, inclusive amostra de problemas é
dada em Tide (Referência 29). Técnicas numéricas, tais
como aquelas dadas em Brandt (Referência 26), têm
sido desenvolvidas para localizar o centro de rotação
instantâneo para tolerância de convergência. Para
eliminar possíveis dificuldades computacionais, a
deformação máxima nos elementos de solda é limitada
ao valor vinculado mais baixo de 0,17W. Para
conveniência de projeto, uma fórmula elíptica simples é
usada para F( ) para aproximar do polinomial derivado
empiricamente em Lesik (Referência 28).
C-2.6.4.4 Grupos de Solda Carregados
Concentricamente. Uma solda carregada
transversalmente a seu eixo longitudinal tem uma
capacidade maior mas uma capacidade de deformação
reduzida mais baixa em comparação a solda carregada
ao longo de seu eixo longitudinal. Portanto, quando
soldas carregadas em ângulos variados são combinadas
em um único grupo de solda o projetista precisa
considerar suas capacidades de deformação relativas
para assegurar que todo o grupo de solda tem
compatibilidade de deformação. O procedimento em
2.6.4.3 considera compatibilidade de deformação.
Desde a introdução da equação em 2.6.4.2, que dá a
resistência de uma solda de filete linear carregada no
plano através de seu centro de gravidade como: Fv =
0,3 FEXX [1+0,5 sin1,5(θ)] muitos engenheiros
simplesmente acrescentaram a capacidade das soldas de
linha individuais em um grupo de solda enquanto
negligenciavam compatibilidade de deformação de
carga. Isso é uma prática não conservadora.
O projeto de um grupo de solda concentricamente
porém obliquamente carregado, além de ser realizado
usando 2.6.4.4 como demonstrado na Figura C-2.5,
pode ser alcançado graficamente usando a Figura C-2.6,
as curvas de deformação por carga. Por exemplo, para
achar a resistência do grupo de solda concentricamente
carregado mostrado na Figura C-2.5, primeiro é
determinado o elemento de solda com a capacidade de
deformação mais limitada. Nesse caso é a solda
transversalmente carregada. Ao desenhar uma linha
vertical a partir do ponto de fratura, o aumento ou
diminuição de resistência para os elementos
remanescentes pode ser determinado.
C-2.7 Configuração e Detalhes de
Junta
C-2.7.1 Considerações Gerais. Em geral, detalhes
deveriam minimizar restrições que inibiriam
comportamento dúctil, evitar concentração de soldagem
indevida, assim como permitir amplo acesso para
depositar metal de solda.
C-2.7.3 Carga Através-Espessura de Metal Base. A
laminação de aço para produzir formas e placas para
uso em estruturas de aço faz com que o metal base
tenha propriedades mecânicas diferentes nas diferentes
direções ortogonais. Isso faz com que seja necessário
que projetistas, detalhistas e fabricantes reconheçam o
potencial para laminações e/ou ruptura lamelar de afetar
a integridade das juntas concluídas, especialmente
quando metal base espesso está envolvido.
Laminações não resultam da soldagem. Elas são um
resultado dos processos de manufatura de aço. Elas
geralmente não afetam a resistência do metal base
quando o plano da laminação é paralelo ao campo de
tensão, isto é, tensionado na direção longitudinal ou
transversal. Elas têm sim um efeito direto sobre a
habilidade de metal base e juntas em T- e de ângulo de
transmitir forças através-espessura.
Rupturas lamelares, se e quando ocorrem, geralmente
são resultado da contração de grandes depósitos de
metal de solda sob condições de alta retenção. Rupturas
lamelares raramente ocorrem quando o tamanho de
solda é menor que cerca de 3/4 in a 1 in [20 mm a 25
mm]. Rupturas lamelares raramente ocorrem sob soldas
de filete. Rupturas lamelares não ocorrem na ausência
de restrição a contração de metal de solda quente
solidificado; no entanto, os passes de solda iniciais
solidificados depositados na área de raiz da solda
podem fornecer um apoio interno rígido para
deformações de contração de tração dos passes de solda
subsequentemente depositados.
Porque rupturas lamelares são causadas por contração
de metal de solda solidificado que é forçado a ser
acomodado em um comprimento curto de medidor por
retenção compressiva de equilíbrio localizada, as
deformações de direção através-espessura da unidade
no metal base podem ser muitas vezes maiores que a
deformação do limite de escoamento. Rupturas
lamelares podem resultar. As deformações localizadas
que podem produzir rupturas lamelares ocorrem após
resfriamento durante a fabricação e constituem a
condição mais severa que será imposta ao metal base na
proximidade da junta na vida da estrutura. Porque as
tensões compressiva e de tração na, ou próximas à,
junta são autoequilibradas, e porque as deformações
associadas com tensões de projeto aplicadas são uma
C-2. PROJETO DE CONEXÕES SOLDADAS AWS D1.1/D1.1M:2010
425
pequena fração daquelas associadas com retração de
solda, cargas aplicadas externamente não iniciam
rupturas lamelares; no entanto, se rupturas foram
iniciadas pela soldagem, rupturas lamelares existentes
podem ser estendidas.
O projeto e detalhamento de juntas de ângulo e em T-
estabelecem as condições que podem aumentar ou
diminuir o potencial de ruptura lamelar, e fazer a
fabricação de uma ligação soldada uma operação direta
e simples ou uma operação difícil e virtualmente
impossível. Portanto, é necessário atenção por parte de
todos os membros da equipe, projetista, detalhista,
fabricante e soldador, para minimizar o potencial de
ruptura lamelar.
Regras definitivas não podem ser fornecidas no código
para assegurar que ruptura lamelar não ocorrerá, assim
esse comentário tem a intenção de fornecer
compreensão das causas e fornecer diretrizes sobre
meios de minimizar a probabilidade de ocorrência. As
seguintes precauções têm demonstrado em testes e
experiência que minimizam o risco de ruptura:
(1) Espessura de metal base e tamanho de solda
deveriam ser adequados para satisfazer requisitos de
projeto; no entanto, projetar juntas baseadas em tensões
menores que as tensões permissíveis do código, mais do
que resultar em um projeto conservador, resulta em
restrição aumentada e tamanho de solda aumentado, e
deformação de retração que devem ser acomodados.
Portanto tal prática aumenta, mais do que diminui, o
potencial de ruptura lamelar.
(2) Usar eletrodos de baixo nível de hidrogênio
quando soldando juntas de ângulo e em T- grandes.
Hidrogênio absorvido não é considerado a principal
causa de início de ruptura lamelar, mas o uso de
eletrodos de baixo nível de hidrogênio em juntas
grandes (longitudinais, transversais ou através-
espessura) para minimizar a tendência de trincas de
resfriamento induzidas por hidrogênio é de qualquer
forma uma boa prática. O uso de eletrodos que não
sejam de baixo nível de hidrogênio pode causar
problemas.
(3) A aplicação de uma camada de passes de solda
de revestimento de espessura de aproximadamente 1/8
in a 3/16 in [3 mm a 5 mm] à face do metal base a ser
estressado na direção através-espessura antes da
montagem da junta tem mostrado em testes e
experiência que reduz a possibilidade de ruptura
lamelar. Tal camada de revestimento fornece metal de
solda duro com uma estrutura de grão fundido em lugar
da estrutura de grão de aço laminado anisotrópico
fibroso no local de deformações por retração mais
intenso.
(4) Em juntas grandes, passes de solda sequenciais
de uma maneira que constrói a superfície de metal base
tensionado na direção longitudinal antes de depositar
cordões de solda contra a face do metal base tensionado
na direção através-espessura. Esse procedimento
permite que uma parte significativa da retração de solda
ocorra na ausência de restrição.
(5) Em juntas de ângulo, quando possível, a
preparação de junta biselada deveria ser no metal base
tensionado na direção através-espessura de forma que o
metal de solda se funda com o metal base em um plano
na espessura do metal base ao grau máximo possível.
(6) Juntas duplas em V- e de bisel duplo requerem
deposição de muito menos metal de solda que juntas
simples em V- ou em bisel simples, e portanto, reduzem
a quantidade de retração de solda a ser acomodado à
metade, aproximadamente. Quando possível, o uso de
tais juntas pode ajudar.
(7) Em ligações soldadas envolvendo várias juntas
de metal base de diferentes espessuras, as juntas
maiores deveriam ser soldadas primeiramente de forma
que os depósitos de solda que podem envolver a maior
quantidade de retração de solda podem ser concluídas
sob condições da menor restrição possível. As juntas
menores, embora soldadas sob condições de maior
restrição, envolverão uma quantia menor de retração de
solda a ser acomodada.
(8) A área de membros aos quais soldas grandes
irão transferir tensões na direção através-espessura
deveria ser inspecionada durante o desenho para
assegurar que retração de solda de junta não aplica
deformações através-espessura no metal base com
laminações ou grande inclusões pré-existentes (ver
ASTM A 578).
(9) Martelamento propriamente executado de passes
de solda intermediários têm demonstrado que reduzem
o potencial de ruptura lamelar. Passes de raiz não
deveriam ser martelados para evitar a possibilidade de
introduzir trincas nos passes de solda fina iniciais que
podem não ser detectados e subsequentemente
propagar-se pela junta. Passes intermediários deveriam
ser martelados com uma ferramenta arredondada com
vigor suficiente para deformar plasticamente a
superfície do passe e alterar os resíduos de tração a
tensões residuais compressivas, mas não tão
vigorosamente de forma a causar uma superfície cortada
ou sobreposições. Passes de acabamento não deveriam
ser martelados.
(10) Evitar o uso de metal de adição supra-
resistente.
(11) Quando possível, usar metal base com enxofre
ou metal base baixo (< 0,006%) com propriedades
através-espessura melhoradas.
(12) Juntas críticas deveriam ser examinadas por
RT ou UT depois que a junta resfriou à temperatura
ambiente.
(13) Se descontinuidades menores forem detectadas
o Engenheiro deveria avaliar cuidadosamente se as
descontinuidades podem ser deixadas sem reparo sem
colocar em perigo a adequação para o serviço ou a
integridade estrutural. A goivagem ou reparo de
soldagem irão acrescentar ciclos adicionais de
aquecimento e resfriamento e contração de solda sob
condições de restrição que têm a possibilidade de serem
mais severas que as condições sob as quais a junta foi
C-2. PROJETO DE CONEXÕES SOLDADAS AWS D1.1/D1.1M:2010
426
inicialmente soldada. Operações de reparo podem
causar uma condição mais prejudicial.
(14) Quando rupturas lamelares são identificadas e
o reparo é considerado aconselhável, o trabalho não
deveria ser conduzido sem antes revisar a WPS e fazer
um esforço para identificar a causa do resultado
insatisfatório. Uma WPS ou uma alteração no detalhe
de junta podem ser requeridos.
C-2.7.4 Combinações de Soldas. Soldas de filete
depositadas sobre soldas em chanfro não aumentam
diretamente a garganta efetiva da junta; portanto a
resistência da junta pode não ser tomada como a soma
algébrica da resistência da solda em chanfro e a
resistência do filete.
C-2.7.5 Contorno de Superfície de Junta de Topo,
de Ângulo e em T-. Soldas de filete de reforço ou
contorno servem como um propósito útil em juntas de
ângulo e em T-, e em juntas de topo anexando partes de
espessura ou largura desigual. Elas fornecem um filete
que reduz a severidade da concentração de tensão que
existiria na alteração geométrica de noventa graus na
seção.
C-2.7.6 Orifícios de Acesso de Solda. Orifícios de
acesso de solda não são requeridos e sequer desejáveis
para toda aplicação. No entanto, é importante
reconhecer que qualquer junta transversal na flange da
flange larga, H e seções transversais similares feitas
sem o uso de um orifício de acesso de solda não pode
ser considerada como uma junta soldada em chanfro
CJP pré-qualificada. Isso é verdade, porque juntas
soldadas em chanfro CJP pré-qualificadas são limitadas
aos casos de elementos de placa simples para elementos
de placa simples mostrados na Figura 3.4. A decisão de
usar juntas CJP pré-qualificadas ou de usar juntas não
pré-qualificadas sem orifícios de acesso depende da
consideração de vários fatores que incluem, entre
outros, os seguintes:
(1) O tamanho dos membros sendo anexados.
(2) Se a junta é uma solda de oficina ou de campo,
isto é, se as partes podem ser posicionadas para
soldagem de forma que soldagem suspensa possa ser
evitada e filetes de reforço possam ser prontamente
depositados no local de pico de concentrações de
tensão.
(3) A variação na restrição a retração de solda e a
distribuição de tensão aplicada ao longo do
comprimento de junta transversal devido à geometria
das partes sendo anexadas. Por exemplo, a alta restrição
devida a braçadeira de coluna na região da linha de
centro da flange de coluna em comparação com a
restrição mais baixa longe da linha de centro causa
tensões residuais de soldagem e tensões aplicadas
extremas na região de difícil soldagem no meio da
flange da viga.
(4) Se, no caso de geometria que permita restrição
mais uniforme sem um "ponto difícil" ao longo do
comprimento da junta, a probabilidade de número
aumentado de descontinuidades de metal de solda
internas pequenas, mas sem a grande descontinuidade
de orifício de acesso de solda, pode fornecer uma junta
de resistência mais alta. Por exemplo, testes de
conexões de momento de placa de extremidade (Murray
1996) têm mostrado que juntas entre extremidades de
viga e placas de extremidade feitas sem orifício de
acesso de solda, mas com descontinuidades sem reparo
na região da junção braçadeira a flange fornecem
resistência mais alta que conexões similares feitas
usando orifícios de acesso mas com menos
descontinuidades internas.
Pesquisa, pensamento e ingenuidade estão sendo
direcionados para detalhes melhorados de soldagem de
conexões de momento de viga-a-coluna. Projeto e
detalhes de juntas alternativos para fornecer a
resistência e adequação para serviço deveriam ser
considerados quando são aplicáveis. Julgamento de
engenharia é requerido.
Quando orifícios de acesso de solda são requeridos, os
requisitos mínimos de 5.17 aplicam-se. O tamanho
mínimo requerido para fornecer espaçamentos para boa
mão de obra e soldas boas pode ter um efeito
significativo nas propriedades líquidas de seção de
membros conectados.
C-2.7.7 Soldas com Rebites ou Parafusos. Em edições
anteriores do código, foi permitido dividir carga entre
soldas w parafusos de alta resistência quando a junta foi
projetada e os parafusos foram instalados como uma
conexão resistente ao deslizamento. Limitações a tal
uso são fornecidas nas Especificações para Juntas
Estruturais Usando Parafusos ASTM A 325 ou A 490
do Research Council on Structural Connections
(Especificação RCSC). Com base em pesquisa de
Kulak e Grondin, (Strength of Joints that Combine
Bolts and Welds; Geoffrey L. Kulak e Gilbert Y.
Grondin, Engineering Journal, Second Quarter,
2003, página 89), a permissão foi retirada na versão
2000 da Especificação RCSC, e a Especificação RCSC
não fornecia orientações.
A AISC Specification for Structural Steel Buildings
(março de 2005), seção J1.8, fornece nova orientação
para a divisão de cargas entre parafusos e soldas.
Parafusos não deveriam ser considerados como
dividindo a carga em combinação com soldas, exceto
conexões com parafusos instalados em orifícios padrão
ou pequenas ranhuras transversais à direção da carga,
que podem ser considerados como dividindo a carga
com soldas de filete longitudinalmente carregadas. Em
tais conexões, a resistência disponível dos parafusos
deveria não ser tomada como maior que 50% da
resistência disponível de parafusos tipo rolamento na
conexão. Quando soldas de filete transversais são
usadas em combinação com parafusos, a deformação no
momento da fratura de solda é tal que quase nenhuma
resistência de cisalhamento de parafuso é desenvolvida.
C-2.8 Configuração e Detalhes de
Junta-Soldas em Chanfro
C-2.8.1 Transições de Espessura e Largura. Em
aplicações de tensão, concentrações de tensão que
C-2. PROJETO DE CONEXÕES SOLDADAS AWS D1.1/D1.1M:2010
427
ocorrem em alterações na espessura do material ou
largura de elementos tensionados, ou ambos, dependem
de quão abrupta é a transição, com fatores de
concentração de tensão variando entre 1 e 3. Em
aplicações estaticamente carregadas, tais alterações
geométricas não têm significância estrutural quando
uma transição livre de entalhe é fornecida. O
Engenheiro deveria considerar o uso de contornos
adicionados a soldas de filete ou outros detalhes para
melhorar a continuidade de fluxo de tensão em
aplicações estáticas em locais tais como emendas de
topo em cordas de tensão alinhadas axialmente de
armações de intervalo longo, juntas submetidas a
aplicações de temperatura baixa em que fratura
quebradiça é uma preocupação ou outros locais de
serviço severos ou de alta tensão. Provisões de fadiga
fornecem os efeitos de descontinuidades geométricas
em aplicações ciclicamente carregadas.
C-2.9 Configuração e Detalhes de
Junta-Juntas Soldadas em
Filete
C-2.9.1.1 Soldas de Filete Transversais. Porque
juntas sobrepostas soldadas em filete carregadas
transversalmente envolvem excentricidade, a força
aplicada tende a abrir a junta e causar ação de alavancar
na raiz da solda, como mostrado no Detalhe B da Figura
C-2.7, a menos que restrita por uma força, R, mostrada
no Detalhe A. O código requer que esse modo de ação
seja prevenido por soldas de filete duplas ou outros
meios.
C-2.9.2 Soldas de Filete Longitudinais. A
transferência de força por soldas de filete longitudinais
sozinhas nas extremidades de membros causam um
efeito conhecido como atraso de cisalhamento na região
de transição entre a junta em que a tensão de
cisalhamento está concentrada ao longo das arestas do
membro ao local em que a tensão no membro pode ser
considerada uniforme através da seção transversal. A
disposição das soldas longitudinais relativas à forma da
seção transversal afeta o projeto do membro assim
como a resistência da conexão. Para o caso simples de
seções transversais do tipo barra chata ou placa, a
experiência, assim como a teoria, têm mostrado que os
requisitos de 2.9.2 asseguram a adequação da conexão
assim como as partes conectadas. Para outras seções
transversais, a área efetiva do membro conectado
depende da disposição das soldas conectadas na
extremidade; portanto, deveria ser feita referência à
especificação aplicável para projeto de membro e
estrutura.
C-2.9.3.1 Terminações de Solda de Filete-Geral.
Na maioria dos casos, quando soldas de filete terminam
nas extremidades ou lados de um membro, isso não tem
efeito sobre a adequação de uma junta ao serviço,
assim, esse é o caso padrão; no entanto, em várias
situações a maneira de terminar é importante. Regras
racionais separadas são fornecidas para casos
individuais.
C-2.9.3.2 Juntas Sobrepostas Sujeitas a Tensão.
Quando uma junta é feita entre membros nos quais uma
parte conectada estende-se além da aresta ou
extremidade da outra parte, é importante que entalhes
sejam evitados na aresta de uma parte sujeita a tensão
calculada. Uma boa prática para evitar tais entalhes em
locais críticos é abrir o arco para soldagem levemente
para trás da aresta e então prosseguir com a deposição
do cordão de solda na direção distante da aresta para
estar protegido contra entalhes.
C-2.9.3.3 Comprimento Máximo de Soldagem de
Acabamento. Para ângulos de enquadramento e
conexões simples de placa de extremidade nas quais a
flexibilidade da conexão presumida no projeto do
membro é importante, testes têm mostrado que a
resistência estática da conexão não depende da presença
ou ausência de soldagem de acabamento. Portanto, uma
solda feita ao longo de uma perna proeminente da
conexão (geralmente a solda vertical) pode ser
interrompida perto da extremidade ou levada às
extremidades de topo e fundo do ângulo ou retornadas
levemente ao longo das extremidades horizontais. No
entanto, se retornos forem usados, é importante
assegurar que o comprimento seja limitado de forma
que a flexibilidade da conexão não seja prejudicada.
C-2.9.3.4 Soldas de Reforço Transversais. A
experiência tem mostrado que quando reforços não são
soldados às flanges, é importante interromper a solda
reforço-a-braçadeira a uma distância curta da
extremidade de solda braçadeira-a-flange. Se isso não
for feito, uma leve torção da flange durante manuseio e
remessa normais induzirá a tensões de flexão
extremamente altas no comprimento de medidor
extremamente curto entre a terminação da solda de
reforço e a extremidade da solda braçadeira-a-flange.
Alguns ciclos dessas tensões não calculadas na faixa
inelástica iniciam trincas que podem em última
instância propagar-se através da braçadeira ou flange
em serviço. O comprimento não soldado não deve ser
mais que 6 vezes a espessura da braçadeira para evitar
ondulação na porção não reforçada da solda.
C-2.9.3.5 Lados Opostos de um Plano Comum.
Uma tentativa de amarrar duas soldas de filete
depositada em lados opostos de um plano comum de
contato entre duas partes poderia resultar em entalhes
ou máscaras de acabamento pobre.
C-2.12 Membros Construídos
C-2.12.2.1 Geral. Independentemente dos requisitos
para soldagem suficiente para assegurar que as peças
ajam em uníssono, um espaçamento máximo para
soldas de filete descontínuas é especificado para
assegurar ajuste de juntas que irão permitir pintura para
selar partes não soldadas da junta e para prevenir
"acolchoamento" não visível de metal base entre soldas
para juntas que são protegidas contra corrosão por
anexação am uma construção.
C-2.12.2.2 Membros de Compressão. Os critérios
para espaçamento de soldas de filete descontínuas
C-2. PROJETO DE CONEXÕES SOLDADAS AWS D1.1/D1.1M:2010
428
anexando placas de membros anexadas sujeitas a
compressão são derivadas da teoria clássica de
ondulação de placas elásticas e são consistentes com os
critérios fornecidos em AISC Specification for Design
Fabrication and Erection of Structural Steel
Buildings.
C-2.12.2.3 Aço sem Pintura Exposto às
Intempéries. Para aço sem pintura exposto às
intempéries que será exposto à corrosão atmosférica,
com base em experiência e teste, um espaçamento mais
próximo é requerido para fornecer resistência a volume
de produtos de corrosão entre partes, causando
"acolchoamento" não visível entre soldas e o potencial
de iniciar trincas nas terminações de solda.
C-2.13 Geral
C-2.13.1 Aplicabilidade. As provisões da Parte C do
código aplicam-se a estruturas e ligações soldadas
sujeitas a muitos ciclos de aplicação, remoção e
reaplicação da carga viva na faixa elástica de tensão.
Esse tipo de carga é geralmente designado fadiga de
alto ciclo. As tensões máximas calculadas de projeto
permitidas sob o código estão na faixa de 0,60 Fy ou
como similarmente permitido por outros códigos e
especificações padrão invocados. Assim, a faixa
máxima de tensão devida à aplicação e remoção de
carga viva é geralmente alguma fração desse nível de
tensão. Embora essas condições não tenham sido
adotadas para o propósito de limitar o âmbito de
aplicabilidade das provisões do código, elas
estabelecem fronteiras naturais que deveriam ser
reconhecidas.
O projeto para resistência à fadiga não é normalmente
requerido para estruturas de construção; no entanto,
casos envolvendo carga cíclica que pode causar início
de trinca e propagação de trinca de fadiga incluem entre
outros o seguinte:
(1) Membros suportando equipamento de
elevação.
(2) Membros suportando cargas de tráfico de
laminação.
(3) Membros sujeito a vibração harmônica
induzida por vento.
(4) Suporte para maquinaria recíproca.
Para colocar alguma perspectiva no âmbito de
aplicabilidade, por exemplo, se a faixa de tensão no
metal base conectado de um detalhe soldado
relativamente sensível (a extremidade de uma placa de
cobertura de comprimento parcial) devido a ciclos de
aplicação e remoção de carga viva completa é 30 ksi
[210 MPa], a vida prevista até falha por fadiga é 36.000
ciclos (4 aplicações por dia por 25 anos). Para o mesmo
detalhe, se a faixa de tensão é menos que 4,5 ksi [32
MPa], vida infinita seria esperada. Portanto, se os
ciclos de aplicação de carga viva completa são menos
que alguns milhares de ciclos ou a faixa de tensão
resultante é menor que a faixa limite de tensão, a fadiga
não precisa ser uma preocupação.
C-2.14 Limitações
C-2.14.2 Fadiga de Ciclo Baixo. Como a carga de
terremoto envolve um número relativamente baixo de
ciclos de alta tensão na faixa inelástica, confiar nas
provisões dessa Parte C para projeto para carga de
terremoto não é apropriado.
C-2.14.4 Membros Redundantes e Não
Redundantes. O conceito de reconhecer uma distinção
entre membros e detalhes redundantes e não
redundantes não é baseada na consideração de qualquer
diferença no desempenho de fadiga de qualquer
membro ou detalhe dado, mas antes na consequência de
falha. Antes da adoção de AASHTO/AWS D1.5,
Especificações AASHTO forneciam critérios para
fatura em membros críticos que incluíam metal base e
requisitos de inspeção especiais, mas que incorporavam
por referência curvas de faixa de tensão de tensão
reduzida permissível, como em Dl.l Cláusula 9
(interrompida em 1996). As curvas de faixa de tensão
reduzida permissível, designadas para estruturas não
redundantes, foram derivadas por limitar
arbitrariamente as faixas de tensão de fadiga a
aproximadamente 80% das curvas de faixa de tensão
para membros e detalhes redundantes. Com a adoção de
AASHTO/AWS D1.5, referência ao Código AWS D1.1
Cláusula 9 (interrompida em1996) para tensões
permissíveis e tensões e faixas de tensão foi eliminada e
alterada para especificações de projeto AASHTO.
Subsequentemente, em AASHTO foi decidido que
faixas de tensão permissível específicas que eram
apenas 80% do meio menos 2 curvas de desvio padrão
para dados de teste de detalhe de fadiga, além de metal
base e requisitos de inspeção especiais, constituindo um
duplo conservadorismo. Assim, nas Especificações
AASHTO LRFD atuais para o projeto de pontes, as
faixas de tensão permissíveis abaixadas para projeto de
membros e detalhes não redundantes foram eliminados
enquanto metal base e requisitos de inspeção especiais
foram retidos.
C-2.15 Cálculos de Tensões
C-2.15.1 Análise Elástica. Os critérios contidos nessa
Tabela 2.5 são baseados no teste de fadiga de espécimes
típicos de tamanho completo dos casos apresentados.
Os efeitos de concentrações de faixa geométrica local
são considerados pelas categorias de tensão.
C-2.16 Tensões Permissíveis e Faixas
de Tensão
C-2.16.2 Faixa de Tensão Permissível. Os critérios de
curvas de faixa de ciclo de vida fornecidos pelas
Fórmulas de (2) a (4) e assinalados graficamente na
Figura 2.11 foram desenvolvidos através de pesquisa
patrocinada pelo National Cooperative Highway
Research Program sobre detalhes reais que
incorporaram descontinuidades geométricas realísticas
C-2. PROJETO DE CONEXÕES SOLDADAS AWS D1.1/D1.1M:2010
429
tornando impróprio amplificar tensões calculadas para
considerar o efeito de entalhe. Essa pesquisa é
publicada como relatórios de pesquisa 102 e 147
"Efeitos de Ligações Soldadas na Resistência de Vigas"
e "Resistência de Vigas de Aço com Reforços e Anexos
Soldados." Pesquisa subsequente nos Estados Unidos e
em outros países em outros detalhes reais suporta casos
contidos na Tabela 2.5 mas não contidos no programa
de teste NCHRP.
Quando um elemento de placa que está conectado por
uma solda transversal CJP ou PJP, ou por um par de
soldas de filete transversal em lados opostos de uma
placa, é sujeito a carga ciclicamente aplicada, as
extremidades das soldas transversais são geralmente o
local crítico para início de trinca no metal base
conectado. A faixa de tensão crítica para início de trinca
nesse local é a mesma para cada um dos tipos de junta e
pode ser determinada pela Fórmula (2), e critérios
Categoria C. Por outro lado, se uma solda transversal é
uma solda PJP ou um par de soldas de filete, o potencial
para início de trinca a partir da raiz das soldas, assim
como início de trinca a partir da extremidade oposta da
solda se o metal base ao qual a carga é entregue é
sujeito a tensão de tração de flexão, também deve ser
considerado. A faixa máxima de tensão para a junta
para considerar trinca a partir da raiz é determinada pela
multiplicação do critério de faixa de tensão permissível
para trinca a partir da extremidade por um fator de
redução. O tamanho relativo da dimensão de espessura
não soldada da junta à espessura da placa é o parâmetro
essencial no fator de redução incorporado na Fórmula
(4). Para o caso de um par de soldas de filete em lados
opostos da placa, 2a/ torna-se unidade e a fórmula de
fator de redução reduz a Fórmula (5) (ver Referência
32).
C-2.17 Detalhamento, Fabricação e
Ereção
C-2.17.6 Terminações de Soldas de Filete. Em
suportes de ângulo soldado em filete, sedes dos ângulos
de viga, ângulos de enquadramento e conexões
similares, nos quais a carga aplicada tende a separar as
peças conectadas e aplicar tensão de tração na raiz da
solda, a solda é requerida a retornar para proteger a raiz
no começo da solda contra início de trinca.
C-2.20 Geral (Conexões Tubulares)
As provisões tubulares desse código originalmente
evoluíram de um histórico de práticas e experiência
com plataformas fixas marítimas de construção tubular
soldada. Como pontes, estas estão sujeitas a uma
quantia moderada de carga cíclica. Como estruturas de
construção convencionais, elas são redundantes a um
grau que evita que falhas isoladas de junta sejam
catastróficas. Os requisitos da Cláusula 2, Parte D, têm
a intenção de ser aplicáveis geralmente a uma ampla
variedade de estruturas tubulares
C-2.21 Tensões Permissíveis
(Tubulares)
Essa parte que lida com tensões permissíveis para
seções tubulares inclui requisitos para seções quadradas
e retangulares assim como tubos circulares.
Em tipos comumente usados de conexões tubulares, a
solda pode ela mesma não ser o fator limitante da
capacidade de junta. Tais limitações como falha local
(puncionamentopuncionamento), colapso geral do
membro principal e ruptura lamelar são discutidos
porque não são adequadamente abordados em outros
códigos.
C-2.21.1 Tensões de Metal Base. Espessura/diâmetro
de limitação e razões de largura/espessura dependem da
aplicação. Com referência à Tabela C-2.1, o lado
esquerdo lida com assuntos de projeto de conexão
cobertos pelo código AWS D1.1. As três primeiras
colunas delimitam membros sólidos para os quais regras
simplificadas de projeto se aplicam; além desses limites
cálculos mais detalhados dados no código devem ser
realizados.
Os limites para projetar membros contra ondulação
local em vários graus de plasticidade são mostrados no
lado direito. Esses são um amálgama de requisitos API,
AISC, e AISI. Naturalmente, requisitos da
especificação reguladora de projeto tomaria precedência
aqui.
C-2.21.3 Tensões de Solda. As unidades de tensões
permissíveis em soldas são apresentadas na Tabela 2.6.
Essa tabela é uma versão consolidada e condensada que
lista para cada tipo de solda a unidade de tensão
permissível para aplicação tubular e o tipo de tensão
que a solda irá sofrer. O nível de resistência de metal
de solda também é especificado. Essa tabela é
apresentada no mesmo formato que a Tabela 2.3.
C-2.21.6.2 Categorias de Tensão de Fadiga. A
base para as categorias de tensão de fadiga podem ser
encontradas na referência 1. Essas foram derivadas a
parir dos dados sobre seções circulares e fornecem
apenas orientação aproximada para seções de caixa.
As categorias de tensão e curvas de fadiga foram
revisadas para serem consistentes com provisões atuais
de estrutura ciclicamente carregada 2.16.2 e a última
revisão de API RP 2A (Referência 9).
A parte inclinada da maioria das curvas mais recentes
foi retida. Seguindo API, as curvas X e Y foram
divididas em duas curvas cada. A curva superior
representa espécimes de pequena escala de qualidade de
laboratório no banco de dados histórico (pré-1972),
enquanto as curvas mais baixas representam testes em
larga escala tendo soldas sem controle de perfil. Ao
interpretar esse último, edições anteriores dos códigos
americanos enfatizaram o perfil de solda enquanto
regras britânicas propostas (Referência 12) enfatizam
efeitos de espessura. A hipótese atual é de que tanto
perfil de solda quanto efeito de tamanho são
C-2. PROJETO DE CONEXÕES SOLDADAS AWS D1.1/D1.1M:2010
430
importantes para compreender desempenho de fadiga, e
de são inter-relacionados. Essa é também uma área em
que projeto e soldagem não podem ser separados, e
2.21.6.7 faz referência a um conjunto consistente de
práticas de controle de perfil de solda "padrão" e
seleções de categoria de fadiga, como uma função de
espessura. Perfis e retificações aprimoradas são
discutidos em 2.21.6.6 assim como martelamento como
um método alternativo de aprimoramento de fadiga.
Os limites de resistência na maioria das curvas foram
atrasados além dos dois milhões de ciclos tradicionais.
O banco de dados histórico não forneceu muita
orientação nessa área, enquanto dados mais recentes a
partir de espécimes maiores soldados mostram
claramente que a parte inclinada deveria ser continuada.
Os cortes são consistentes com aqueles de estruturas
ciclicamente carregadas e serviço atmosférico. Para
carga aleatória em um ambiente marítimo, a API adotou
um corte de 200 milhões de ciclos; no entanto, essa
necessidade não se aplica a aplicações AWS.
Com os cortes revisados, um único conjunto de curvas
pode ser usado para ambas as estruturas redundantes e
não redundantes quando as provisões 2.21.6.5 são
levadas em conta.
Para Categoria K (puncionamentopuncionamento para
conexões em K-), a curva de projeto empírica foi
derivada de testes envolvendo cargas axiais em
membros de ramificação. A fórmula de
puncionamentopuncionamento baseada sobre
considerações brutas de estática (agindo VP em
2.25.1.1) e geometria (2.24.3) nem sempre produz
resultados consistentes com o que é sabido sobre a
influência de vários modos de carga em pontos de
aquecimento de tensão localizados, particularmente
quando flexão está envolvida. Como alguns parâmetros
relevantes (por exemplo, a folga entre cintas) não estão
incluídos, a aproximação simplificada a seguir parece
ser mais apropriada para conexões típicas com 0,3 ≤ β ≤
0,7.
Nessas fórmulas, as tensões nominais de membro de
ramificação fa, fby, fbz correspondem aos modos de carga
mostrados na Figura C-2.8. O fator r x no f foi
introduzido para combinar as curvas anteriores K e T
em uma única curva. Outros termos são ilustrados na
Figura C-2.12.
C-2.21.6.3 Limitação Básica de Tensão
Permissível. Dados de fadiga caracteristicamente
mostram uma grande quantia de dispersão. As curvas de
projeto foram desenhadas para cair no lado seguro de
95% do ponto de dados. Os critérios de projeto da AWS
são apropriados para estruturas redundantes e livres de
falhas nas quais falha de fadiga localizada de uma única
conexão não leva imediatamente a colapso. Para
membros críticos cuja falha seria catastrófica, a razão
de dano de fadiga cumulativa, D, como definido em
2.21.6.4, deve ser limitada a um valor fracional (isto é,
113) para fornecer um fator de segurança acrescentado.
A declaração presume que não há polarização
conservadora ou fator de segurança oculto no espectro
de cargas aplicadas usado para análise de fadiga (muitos
códigos incluem tal polarização). As Referência 8 e 9
discutem aplicação desses critérios para estruturas
marítimas, inclusive modificações que podem ser
apropriadas para fadiga de alto ciclo sob carga aleatória
e ambientes corrosivos.
C-2.21.6.6 Melhoria de Comportamento de
Fadiga. O comportamento de juntas soldadas em bruto
pode ser melhorado ao reduzir o efeito de entalhe na
extremidade da solda, ou ao reduzir tensões residuais de
tração, nenhum dos quais está incluído na faixa de
deformação do ponto de aquecimento medido que
projetistas usam. Vários métodos para aprimorar o
comportamento de fadiga de juntas soldadas, como
discutido na Referência 11, são como segue: aprimorar
o perfil de soldagem em bruto (inclusive o uso de
eletrodos especiais projetados para fornecer uma
transição suave na extremidade da solda), retificação
completa de perfil, retificação de extremidade de solda,
novo derretimento de extremidade de solda (preparação
GTAW ou preparação de arco de plasma),
martelamento e rebitagem.
Uma prática de indústria marítima há muito
estabelecida (mas não usada universalmente) para perfil
de solda aperfeiçoado é mostrada na Figura C-2.9. O
perfil desejado é côncavo, com um raio mínimo de
metade da espessura do membro de ramificação e
funde-se suavemente com o metal base adjacente.
Alcançar o perfil de soldagem em bruto desejado
geralmente requer a seleção de materiais de soldagem
com boas características de perfil e umedecimento,
assim como os serviços de um especialista em
fechamento que domina a técnica de passe de lavagem
de passe estreito para várias posições e geometrias a
serem encontradas. Dificuldades em alcançar isso são
frequentemente experimentadas com processos de alta
taxa de deposição nas posições suspensa e vertical.
Inspeção do perfil de solda acabado é na maior parte
visual, com o teste de disco sendo aplicado para
resolver casos limite. Entalhes relativos ao perfil de
solda desejado são considerados inaceitáveis de um
arame de 0,04 in [1 mm] pode ser inserido entre o disco
do raio especificado e a solda, tanto na extremidade da
solda como entre passos.
Edições anteriores de AWS D1.1 continham um
requisito de perfil de solda menos estrito. Perfis de
solda surpreendentemente pobres podiam passar no
teste, com o efeito relativo de efeito de entalhe
tornando-se gradativamente mais severo conforme a
espessura do membro aumentava. Pesquisas europeias
recentes têm mostrado que o D1.1 anterior era
inadequado para distinguir entre conexões tubulares
soldadas que atendem o desempenho de Classificação
C-2. PROJETO DE CONEXÕES SOLDADAS AWS D1.1/D1.1M:2010
431
de Fadiga X1 da AWS, e aqueles que não (Referências
11 e 12).
Considerações mecânicas de fratura e de análise de
tensão de entalhe, enquanto em conformidade com a
inadequação de requisitos antigos de perfil para seções
pesadas, também indica que os requisitos mais fechados
da Figura C-2.9 são mais efetivos em manter
desempenho de fadiga de Classe X1 sobre uma larga
faixa de espessuras (Referência 13). A Figura C-2.9
também sugere o uso de retificação leve para corrigir
defeitos de extremidade, tais como profundidade de
entalhe ou mordedura excessivas. Uma vez que comece
a retificação, observe que a profundidade de entalhe
permissível é reduzida a 0,01 in [0,25 mm]; meramente
aplainando os topos de passes de solda individuais,
enquanto deixa gargantas afiadas no processo, faz
pouco para melhorar o desempenho de fadiga, mesmo
que atendesse a letra do teste de disco.
Como as extremidades de soldas frequentemente
contêm trincas microscópicas e outros defeitos similares
a trincas, MT é necessário para assegurar que esses
defeitos foram eliminados. Uso criterioso de retificação
para resolver indicação MT, frequentemente feito
rotineiramente como parte da inspeção, também
melhora o perfil de solda.
Dependendo das circunstâncias, pode ser mais rentável
realizar a retificação fina de todo o perfil de solda. Isso
evitaria o uso de técnicas especiais verificação de perfil
de soldagem, retificação corretiva e MT, como descrito
acima, para controlar o perfil de soldagem em bruto. Pra
conexões tubulares, com múltiplos passes de
acabamento côncavos, as trincas de fadiga podem
começar no entalhe entre passes; aqui, apenas a
retificação de extremidade de solda não é tão efetiva
quanto os perfis de solda de filete plana que foram
usados em grande parte da pesquisa.
Técnicas para derreter novamente extremidade de solda
podem melhorar a geometria do entalhe na extremidade
de solda, e têm mostrado em laboratório que melhoram
o desempenho de fadiga de conexões soldadas. No
entanto, a menos que seja cuidadosamente controlado, o
ciclo rápido de aquecimento e resfriamento tende a
produzir HAZs inaceitavelmente duras, com possível
suscetibilidade a trinca de corrosão de tensão em
ambientes agressivos (por exemplo, água do mar).
Martelamento com uma ferramenta arredondada
também melhora a geometria da extremidade de solda,
isso adicionalmente induz a tensão residual compressiva
na camada de superfície em que trincas de fadiga seriam
de outra forma iniciadas. Deformação excessiva do
metal base pode torná-lo suscetível a deformação
quebradiça por causa da soldagem próxima
subsequente. Também, camadas de superfície também
podem ser manchadas de forma a obscurecer ou
obliterar trincas pré-existentes; por isso os requisitos
para MT. Rebitagem é menos radical em sua
deformação e efeitos, mas também menos efetiva em
melhorara geometria.
Deveria se enfatizado que, para muitas aplicações de
estruturas tubulares, as Classificações X2, K2 e ET de
desempenho de fadiga serão suficientes, e as medidas
anteriores tomadas para melhorar desempenho de fadiga
não são requeridas. Além do mais, as práticas "padrão"
de perfil de solda descritas em 3.13.5 podem alcançar as
Classificações X1, K1 e DT de desempenho de fadiga
pra todas as seções, exceto as mais pesadas.
C-2.21.6.7 Efeitos de Tamanho e Perfil. O feito
adverso de tamanho na fadiga de conexões soldadas é
bem documentado (Referências recentes 11, 12 e 13,
assim como muitas anteriores). Para juntas soldadas
com um entalhe agudo na extremidade da solda,
aumentar em escala o tamanho da solda e o tamanho do
entalhe resulta em diminuição de desempenho de
fadiga. Quando a aplicação excede a escala do banco
de dados, efeito de tamanho deveria ser considerado no
projeto. A Referência 12 sugere diminuição da
resistência de fadiga em proporção a
[
( )
( )
]
Outras autoridades (Referência 14) indicam um efeito
de tamanho mais moderado, aproximando um
exponente de 0-10.
O efeito de entalhe geométrico largamente responsável
pelo efeito de tamanho em soldas não está presente em
perfis completamente retificados e é relativamente
menor para aqueles perfis que fundem suavemente com
o metal base adjacente (Categorias de Fadiga B e C1).
Os limites de tamanho declarados (além dos quais
estamos fora do banco de dados histórico) para a maior
parte das outras categorias são similares àqueles citados
na Referência 12, exceto que as dimensões em
polegadas foram arredondadas. Os maiores limites de
tamanho para as Categorias X2, K2 e DT refletem o
fato d que essas curvas S-N já foram desenhadas para
ficar aquém dos dados de teste de larga escala recentes.
A Referência 13 discute o papel de efeito de tamanho
relativo a perfil de solda, em vários níveis de
desempenho de fadiga. As práticas "padrão" de perfil de
solda para conexões em T-, Y- e K- referidas em
2.21.6.7 variam com espessura de forma a definir dois
níveis de desempenho de fadiga que são independentes
de tamanho. No entanto, quando um perfil inferior é
estendido além se sua faixa padrão, o feito de tamanho
(redução em desempenho) entraria em ação. Perfis de
solda "melhorados" que atendem os requisitos de
2.21.6.6(1) mantêm o efeito de entalhe constante sobre
uma larga faixa de espessuras, dessa forma mitigando o
efeito de tamanho. O perfil de superfície lisa de soldas
completamente retificadas também não exibe efeitos de
tamanho. Como martelamento apenas melhora um
volume relativo limitado da junta soldada, seria
esperado que o efeito de tamanho se mostrasse logo se o
martelamento fosse a única medida tomada; no entanto,
o martelamento não deveria incorrer em penalidade de
efeito de tamanho se for feito em acréscimo a controle
de perfil.
O efeito de tamanho também pode se exibir em
comportamento estático de resistência de ruptura, desde
que as regras de projeto sejam baseadas em parte em
C-2. PROJETO DE CONEXÕES SOLDADAS AWS D1.1/D1.1M:2010
432
testes para fratura de tração. Para conexões tubulares
em T-, Y- e K- envolvendo aços de alta resistência de
tenacidade ao entalhe baixa ou desconhecida, as
seleções de perfil Nível I são recomendadas em
preferência a entalhes maiores permitidos pelo Nível II.
C-2.25 Limitações da Resistência de
Conexões Soldadas
Um número de modos de falha únicos é possível em
conexões tubulares. Em acréscimo às verificações
usuais em tensão de solda fornecidas na maioria dos
códigos de projeto, o projetista deveria verificar o
seguinte:
Circular Caixa
(1) Falha local* 2 25 1 1 2 25 2 1
(2) Colapso geral 2 25 1 2 2 25 2 2
(3) Falha progressiva
(descompactante) 2 25 1 3 2 25 2 3
(4) Problemas materiais 2 27 0 0 2 27 1 5
* Conexões sobrepostas são abordadas em 2.25.1.6 e
2.25.2.4, respectivamente.
C-2.25.1.1 Falha Local. Os requisitos de projeto
são declarados em termos de tensão nominal de
puncionamentopuncionamento (ver Figura C-2.10 para
o conceito simplificado de
puncionamentopuncionamento). A situação de tensão
localizada real é mais complexa que o conceito simples
sugere e inclui flexão de concha e tensão de membrana
também. Qualquer que seja o modo real de falha de
membro principal, o Vp permissível é uma
representação conservadora da tensão de cisalhamento
média em falha em testes estáticos de conexões
tubulares soldadas simples, inclusive um fator de
segurança de 1,8. Para dados de histórico, o usuário
deveria consultar Referências 1-6.
O tratamento de seções de caixa tem sido feito de forma
tão consistente quanto possível com o de seções
circulares. Derivação do VP básico permissível para
seções de caixa inclui um fator de segurança de 1,8,
baseado em análises de limite usando a resistência à
tração de ruptura, que foi assumida em 1,5 vezes o
limite mínimo especificado. É por isso que a (alfa) na
Tabela 2.10 limita Fy na fórmula de projeto para
puncionamentopuncionamento para 2/3 da resistência à
tração.
Uma redistribuição favorável de carga também foi
assumida quando apropriado. Deveria ser esperado que
ocorra flexibilidade dentro dos níveis de carga
permissível. Flexibilidade consideravelmente geral com
deflexão excedendo 0,02D pode ser esperada em cargas
excedendo 120%-160% da estática permissível.
Alternativas à abordagem de
puncionamentopuncionamento para tamanho de
conexões tubulares podem ser encontradas ne literatura
(por exemplo, Referência 3). No entanto, tais regras
empíricas, particularmente equações de projeto que não
são concluídas dimensionalmente, deveriam ser
limitadas em aplicação às configurações e tamanhos (e
unidades) de tubo das quais derivam.
Na edição de 1984, foram feitas mudanças substanciais
nos requisitos de puncionamentopuncionamento para
seções circulares, para atualizá-los. Essas incluem:
(1) Eliminação de Ka e Kb da fórmula para Vp
atuante. Embora lógico do ponto de vista de geometria e
estática, produz tendências impróprias em comparação a
dados de teste na resistência de conexões tubulares.
(2) Novas expressões para o Vp básico permissível
e um novo modificador Qq que fornece resultados
numericamente similares àqueles na Referência 2.
(3) Introdução do parâmetro oval de corda, α, que
combina resultados disponíveis a partir de juntas de
plano único e oferece uma extensão promissora para
juntas multiplanares (Referência 3).
(4) Uma nova expressão para Qf, baseada nos testes
recentes de Yura (Referência 4).
(5) Interação não linear entre carga axial e flexão no
membro ramificado, baseado no comportamento
totalmente plástico de seções tubulares (Referência 5).
A Figura C-2.11 mostra a confiabilidade de novos
critérios de puncionamentopuncionamento baseados em
alfa computado, como um histograma da razão de teste
de resistência de ruptura (teste P) para a permissível. O
banco de dados da Referência 6 foi usado. Testes
impróprios foram excluídos, e Fy efetivo em
conformidade com a regra 2/3 foram estimados, como
descrito em IIW-doc XV-405-77.
Os resultados de testes agrupam-se bem justo no lado
seguro do fator de segurança de resistência de ruptura
nominal de 1,8. Usando um formato de índice de
segurança lognormal, a resistência de ruptura mediana
para juntas falhando por colapso plástico é desvios
padrão de 3,45 acima da carga de projeto, comparável a
índices de segurança de 3 a 4 para conexões em outros
tipos de construção. Ao discriminar entre diferentes
tipos de juntas, os novos critérios alcançam economia
geral similar e maior segurança que os critérios menos
precisos que eles substituem.
O fator de segurança e índice de segurança
aparentemente grandes mostrados para testes de tensão
é polarizado pelo grande número de pequenos tubos no
banco de dados. Se apenas tubos com tc = 0,25 in [7
mm] são considerados, o fator principal de segurança
cai para 3,7; para tc = 0,5 in [13 mm], o fator de
segurança é apenas 2,2. Considerando a singularidade
(entalhe agudo) na extremidade de soldas típicas e o
efeito de tamanho desfavorável em falhas de fratura
controlada, não é permitido bônus para carga de tensão.
Na edição de 1992, o código também incluiu critérios
de projeto de conexão tubular em formato de resistência
de ruptura, subcláusula 2.25.1.1(2) para seções
circulares. Isso foi derivado dos, e pretendeu ser
equivalente aos, critérios anteriores de
puncionamentopuncionamento. A assunção de parede
fina foi feita (isto é, sem correção tb/td) e a conversão
para flexão usa módulos de seção elástica.
C-2. PROJETO DE CONEXÕES SOLDADAS AWS D1.1/D1.1M:2010
433
Quando usado no contexto de AISC-LRFD, com um
fator de resistência de 0,8, isso é nominalmente
equivalente ao fator de segurança de projeto de tensão
permissível (ASD) de 1,8 para estruturas que tenham
40% de carga morta e 60% de cargas de serviço. A
alteração de fator de resistência em cisalhamento
material foi feita para manter essa equivalência.
LRFD cai no lado seguro de ASD para estruturas que
tenham baixa proporção de carga morta. Critérios AISC
para membros de tensão e compressão parecem fazer a
equivalência de compensação em cerca de 25% da
carga morta; assim os critérios LRFD fornecidos aqui
são nominalmente mais conservadores para uma parte
maior da população de estruturas. No entanto, desde
que a correção tb/db para puncionamentopuncionamento
não seja feita agindo Vp τsin f n( -tb/db).
O formato de puncionamentopuncionamento ASD
também contém conservadorismo extra.
A Figura C-2.11 indica um índice de segurança de 3,45,
apropriado para seleção do metal de junta como um
membro (índice de segurança é a margem de segurança
do critério de projeto, inclusive polarização oculta,
expressa no desvio padrão de incerteza total). Para
maiores comparações, o Comitê sobre Estruturas
Tubulares ASCE na Referência 2 derivou um fator de
resistência de 0,81 para critérios de projeto de conexão
tubular similar baseada em Yura, tendo como meta um
índice de segurança de 3,0.
Como os critérios de falha local em 2.25 são usados
para selecionar o membro ou corda principal, a escolha
de índice de segurança é comparada àquela usada para
projetar outros membros estruturais - ao invés dos
valores mais altos frequentemente citados para material
de conexão como rebites, parafusos ou soldas de filete,
que levantam questões adicionais de confiabilidade, por
exemplo, ductilidade e mão de obra locais.
Para estruturas marítimas , tipicamente dominadas por
carga ambiental que ocorre quando são automatizadas,
o esboço de 1986 de API RP2A-LRFD propôs fatores
de resistência mais liberais de 0,90 a 0,95,
correspondendo a um índice de segurança de meta
reduzido de 2,5 (na verdade, 2,1 para membros de
tensão). API também ajustou seus critérios de projeto de
tensão para refletir as razões típicas de benefício tb/td.
No Canadá (Referência 21), usando esses fatores de
resistência com fatores de carga ligeiramente diferentes,
uma diferença de 4,2% nos resultados gerais de fator de
resistência. Isso está no âmbito de precisão de
calibragem.
C-2.25.1.2 Colapso Geral. Além de falha
localizada do membro principal, que ocorre na
proximidade de soldado-na-ramificação, um modo mais
amplo de falha de colapso geral pode ocorrer. Em
membros cilíndricos, isso ocorre por falha plástica oval
geral na concha cilíndrica do membro principal. Em
seções de caixa, isso pode envolver prejuízo de
braçadeira ou ondulação das paredes de lado do
membro principal (ver Referência 15).
C-2.25.1.3 Distribuição Desigual de Carga
(Dimensionamento de Solda). A distribuição elástica
inicial de transferência de carga por toda a solda em
uma conexão tubular é altamente não uniforme, com
carga de linha de pico (kpsi/in ou MPa/mm)
frequentemente sendo um fator de dois ou três mais
altos que este que indicam a base de seções, geometria e
estáticas nominais, como em 2.24.3. Alguma
flexibilidade local é requerida para conexões tubulares
para redistribuir isso e alcançar sua capacidade de
projeto. Se a solda é um elo fraco no sistema, ela pode
"descompactar" antes que a distribuição possa
acontecer.
Os critérios fornecidos no código pretendem prevenir
essa descompactação, aproveitando-se dos fatores mais
altos de segurança em tensões de solda permissível. Por
exemplo, a resistência de ruptura de carga de linha de
uma solda de filete de 0,7t feita com eletrodos E70XX é
0,7t (2,67 x 0,3 x 70) = 39t, adequada para combinar o
limite de escoamento de material de ramificação de aço
moderado.
Para outro exemplo, se a carga de linha de pico é
realmente duas vezes a nominal, projetado para 1,35
vezes a carga de linha nominal fornecerá à junta um
fator de segurança de 1,8, quando a resistência da solda
é 2,67 vezes sua tensão permissível. Regras IIW e
cálculos de resistência com base em LRFD sugerem que
tamanhos de solda maiores correspondentes são
requeridos, por exemplo, 1,0t ou 1,2t (1,07t no esboço
Eurocode). Dado essa fácil maneira de contornar o
problema, não há muitos testes para validar a lógica
anterior da AWS para soldas menores.
C-2.25.2 Conexões de Caixa em T-, Y-, e K-. Em
D1.1-90 e edições anteriores do código, o tratamento de
seções de caixa foi feito de forma tão consistente quanto
possível com o de seções circulares. Derivação do
puncionamentopuncionamento básico permissível Vp
para seções de caixa inclui um fator de segurança de
1,8, baseado em uma simples análise de limite de linha
de ruptura, mas usando a resistência à tração de ruptura,
que foi assumida em 1,5 vezes o limite mínimo
especificado. É por isso que Fy na fórmula de projeto
para puncionamentopuncionamento foi limitado a 2/3
vezes a resistência à tração. Uma redistribuição
favorável de carga também foi assumida quando
apropriado. Deveria ser esperado que ocorra
flexibilidade dentro dos níveis de carga permissível.
Flexibilidade consideravelmente geral com distorção de
conexão excedendo 0,02 D pode ser esperada em cargas
excedendo 120%-160% da estática permissível.
Uma abordagem racional para a resistência de ruptura
de conexões de caixa escalonadas pode ser tomada,
usando o teorema superior vinculado de análise de
limite (ver Figura C-2.13) e padrões de linha de ruptura
(similar àqueles mostrados na Figura C-2.14). Vários
padrões de ruptura para falha plástica de face de corda
deveriam ser assumidos para encontrar a capacidade
mínima computada, que pode ser igual a ou maior que o
verdadeiro valor. Ângulos de ventilação (como
mostrado para conexão em T-) frequentemente
produzem capacidades mais baixas que ângulos simples
C-2. PROJETO DE CONEXÕES SOLDADAS AWS D1.1/D1.1M:2010
434
como mostrado para outros casos. Fatores de projeto
sugeridos, dados na Tabela C-2.2, são consistentes com
a forma como tiramos proveito de endurecimento de
deformação, redistribuição de carga, etc., ao usar testes
para falha como a base para critérios empíricos de
projeto. Em geral, a capacidade será descoberta como
uma função dos parâmetros de topologia não
dimensionáveis β, η, e ξ (definidos na figura) assim
como a espessura-quadrada de corda (correspondendo a
τ e γ no formato de puncionamentopuncionamento).
Para β muito grande (acima de ,85) e conexões em K-
com folga próxima de zero, análise de linha de ruptura
indica capacidade de conexão extremamente alta e
impraticável. Em tais casos, outras provisões
limitadoras baseadas em falha material de cisalhamento
das regiões de reforço e capacidade reduzida para as
regiões mais flexíveis (isto é, largura efetiva) também
devem ser observadas e verificadas.
Embora os velhos critérios AWS abordassem essas
considerações, (Referência 18), para flexão assim como
para carga axial (Referência 19), mais expressões
autoritárias representando um banco de dados muito
maior têm sido desenvolvidos através dos anos pelo
CIDECT (Commite International pour le
Developpement et I’Etude de la Construction
Tubulaire) (Referência 20) e por membros do
Subcomitê XV-E de IIW (Referência 24). Esses
critérios foram adaptados para projeto de estado limite
de estruturas de aço no Canadá (Packer et al Referência
21). O código canadense é similar ao formato AISC-
LRFD. Na edição de 1992, esses critérios atualizados
foram incorporados no código AWS, usando ao formato
de resistência de ruptura espessura-quadrada e fatores
de resistência de Packer, quando aplicável.
C-2.25.2.1 Falha Local. Fatores de carga variam de
equação a equação para refletir as quantias diferentes de
polarização e dispersão aparentes quando essas
equações são comparadas a dados de teste (Referência
21). Por exemplo, a equação para falha plástica de face
de corda de conexões em T-, Y- e transversais são
baseadas em análise de linha de ruptura, ignorando a
resistência de reserva que vem do endurecimento de
deformação; a polarização fornece o fator de segurança
com um de unidade. A segunda equação, para
conexões de folga em K- e N- foi empiricamente
derivada, tinha menos polarização oculta no lado seguro
e causa um fator de resistência mais baixo.
Na transição entre conexões de folga e conexões de
sobreposição, há uma região para a qual não são dados
critérios. (ver Figura C-2.12). A prática de
detalhamento de estrutura marítima fornece tipicamente
uma folga mínima "g" de 2 in [50 mm]. ou uma
sobreposição mínima "q" de 3 in [75 mm], para evitar
interferência de solda. Para conexões de caixa de
diâmetro menor, as limitações são estabelecidas em
relação às proporções do membro. Essas limitações
também servem para evitar o caso de tocar
extremidades para conexões de caixa escalonadas, nas
quais um caminho de carga desproporcionalmente
rígido é criado que não pode lidar com toda a carga que
atrai, possivelmente levando a falha progressiva.
C-2.25.2.2 Colapso Geral. Para evitar uma
adaptação um tanto estranha de ondulação de coluna
permissível para o problema de prejuízo de braçadeira
de seção de caixa (por exemplo, Referência 15).
Critérios AISC-LRFD de flexibilização, prejuízo e
ondulação transversal de braçadeira foram adaptados
para tensão, casos de carga de um lado e dois lados,
respectivamente. Os fatores de resistência dados são os
de AISC. Packer (Referência 22) indica uma correlação
razoavelmente boa com resultados de teste de conexão
de caixa disponível, na maioria da variedade de dois
lados.
C-2.25.2.3 Distribuição Desigual de Carga
(Largura Efetiva). Para seções de caixa, esse problema
é agora tratado em termos de conceitos de largura
efetiva, na qual entrega de carga a partes mais flexíveis
da corda é ignorada. Critérios para verificações de
membro de ramificação são dados em 2.25.2.3(1)
baseado empiricamente em trabalho IIW/CIDECT.
Critérios para cálculos de carga em soldas (2.24.5) são
baseados no teste de Packer (Referência 23) para
conexões de folga em K- e N-; e em extrapolação e
simplificação de conceitos de largura efetiva de IIW
para conexões transversais e em T- e Y-.
C-2.25.2.4 Conexões Sobrepostas. Ao fornecer
transferência de carga direta de um membro de
ramificação ao outro em conexões em K- e N-, juntas
sobrepostas reduzem as demandas de
puncionamentopuncionamento no membro principal,
permitindo o uso de membros de corda mais finos em
estruturas. São particularmente vantajosos em seções de
caixa, nas quais as preparações de extremidade do
membro não são tão complexas como para tubos
circulares.
Conexões completamente sobrepostas, nas quais a cinta
de sobreposição é inteiramente soldada à cinta
conectada, sem qualquer contato de corda, têm a
vantagem de preparações de extremidade ainda mais
simples. No entanto, o problema de
puncionamentopuncionamento que estava na corda para
conexões de folga é agora transferido para a cinta
conectada, que também tem cisalhamento de viga e
cargas de flexão altos ao carregar essas cargas para a
corda.
A maior parte dos testes de conexões sobrepostas tem
sido para casos de carga perfeitamente equilibrada, na
qual a carga transversal compressiva de uma
ramificação é compensada pela carga de tensão da
outra. Em tais conexões sobrepostas, sujeitas a carga
equilibrada e predominantemente estática axial, testes
têm mostrado que não é necessário concluir a solda
"oculta" na extremidade do membro conectado. Em
situações de projeto do mundo real, no entanto, carga de
cisalhamento de corda localizada ou cargas de trave-
mestra entregues aos pontos de painel de um resultado
de estrutura em cargas não equilibradas. Nessas
situações de desequilíbrio, o membro mais pesadamente
carregado deveria ser a cinta conectada, com sua
circunferência completa soldada à corda e verificações
adicionais de carga líquida na área de cobertura
combinada de todas as cintas são requeridas.
C-2. PROJETO DE CONEXÕES SOLDADAS AWS D1.1/D1.1M:2010
435
C-2.25.2.5 Flexão. Como critérios internacionais
para capacidade de flexão de conexões tubulares não
são tão bem desenvolvidos quanto para cargas axiais, os
efeitos de momentos de flexão primária são
aproximados como uma carga axial adicional. Na
expressão de projeto, JD representa metade do braço de
momento entre blocos de tensão criando o momento,
análogo a metade de projeto concreto, porque apenas
metade da capacidade axial jaz em cada lado do eixo
neutro. Vários estados limite de ruptura são usados para
derivar as expressões para JD na Tabela C-2.3. Para
plastificação de face de corda, um
puncionamentopuncionamento uniforme ou capacidade
de carga de linha é assumido. Para o limite de
resistência de cisalhamento material, a largura efetiva é
usada. Colapsos gerais refletem um mecanismo de falha
de parede de lado. Finalmente, uma expressão
simplificada para JD é dada, que pode
conservadoramente ser usada por qualquer dos modos
de falha reguladores.
Deveria ser tomado cuidado quando deflexões devidas a
rotações de junta poderiam ser importantes, por
exemplo, lateralmente com relação a quadros de portal
em aplicações arquitetônicas. Edições anteriores do
código forneceram um decréscimo de 1/3 em
capacidade de conexão permissível para essa situação.
C-2.25.2.6 Outras Configurações. A equivalência
de membros de ramificação de caixa e circulares em
cordas de caixa é baseada em seus perímetros
respectivos ( ,785 é π/4). Isso em efeito aplica o
conceito de puncionamentopuncionamento ao
problema, mesmo que esses critérios internacionais
sejam sempre dados em formato de resistência de
ruptura. Os resultados estão no lado seguro de
resultados de teste disponíveis.
C-2.27 Limitações de Material
Uma abordagem racional para a resistência de ruptura
de conexões de caixa escalonadas pode ser tomada,
usando o teorema superior vinculado de análise de
limite (ver Figura C-2.13) e padrões de linha de ruptura
similares àqueles mostrados na Figura C-2.14. Vários
padrões de linha de ruptura deveriam ser assumidos
para encontrar a capacidade mínima computada, que
pode ser igual a ou maior que o verdadeiro valor.
Ângulos de ventilação (como mostrado para junta em
T-) frequentemente produzem capacidade mais baixa
que ângulos simples como mostrado para outros casos.
Fatores de projeto sugeridos são dados na Tabela C-2.2;
esses têm a intenção de serem consistentes com aqueles
usados no corpo do código. Para conexões em T- e Y-,
o modificador de geometria é descoberto como uma
função de 11 assim como ' em contraste com a
expressão mais simples dada em 2.24.1. Para conexões
em K-, o parâmetro de folga ξ também deveria ser
levado em conta. Esse parâmetros de geometria sem
dimensão, η, β, e ξ são definidos na Figura C-2.13.
Para folgas aproximando 0 e para unidade de
abordagem β muito grande, análise de linha de ruptura
indica capacidade de junta extremamente alta e
impraticável. As provisões de limitação de 2.25.1.1 e
2.25.1.3 também deveriam ser verificadas.
C-2.27.1.3 Conexões de Caixa em T-, Y-, ou K-.
Conexões tubulares são sujeitas a concentração de
tensão que pode levar a deformações de ruptura locais e
plásticas. Entalhes e descontinuidades agudos na
extremidade de soldas e trincas de fadiga que se iniciam
sob carga cíclica, colocam demanda adicional na
ductibilidade e tenacidade ao entalhe do aço,
particularmente sob cargas cíclicas. Essas demandas
são particularmente severas no membro principal de
conexões tubulares em T-, Y- e K-. Tubulação de caixa
formada a frio (por exemplo, ASTM A 500 e tubulação
fabricada a partir de placas flexionadas) é suscetível a
tenacidade degradada devido a deformação de
envelhecimento nos cantos, quando essas regiões
severamente deformadas são sujeitas a aquecimento
moderado uniforme de soldagem próxima. A adequação
de tal tubulação ao serviço pretendido deveria ser
avaliada usando testes representando sua condição final
(isto é, deformada e envelhecida, se a tubulação não é
normalizada após a formação) (ver C-2.27.2.2 para uma
discussão de requisitos de teste CVN).
C-2.27.2 Tenacidade ao Entalhe de Metal Base
Tubular. Alguns aços são listados por grupo de
resistência (Grupos I, II, III, IV e V) e classe de
tenacidade (Classes A< B e C) nas Tabelas C-2.4-C-2.6.
Essas listas são para orientação para projetistas, e
seguem práticas há muito estabelecidas para estruturas
marítimas, como descrito na Referência 9 e a seguir:
Grupos de Resistência. Aços podem ser agrupados de
acordo com o nível de resistência e características de
soldagem como segue (ver também 3.3 e 3.5):
(1) O Grupo I designa aços de carbono estruturais
moderados com limite de escoamento mínimo
especificado de 40 ksi [280 MPa] ou menos. Carbono
equivalente (definido no Anexo I, 16.1.1) é geralmente
0,40% ou menos, e esses aços podem ser soldados por
quaisquer projetos de soldagem como descrito no
código.
(2) O Grupo II designa aços de baixa liga de
resistência intermediária com limite de escoamento
mínimo especificado de acima de 40 ksi até 52 ksi [280
MPa a 360 MPa]. Faixas de carbono equivalente de
0,45% a maiores, e esses aços requerem o uso de
processos de soldagem de baixo nível de hidrogênio.
(3) O Grupo II designa aços de baixa liga de
resistência alta com limite de escoamento mínimo
especificado acima de 52 ksi até 75 ksi [360 MPa a 515
MPa]. Tais aços podem ser usados, contanto que cada
aplicação seja investigada com respeito ao seguinte:
(a) Soldabilidade e WPSs especiais que podem
ser requeridas. WPSs de baixo nível de hidrogênio
seriam geralmente presumidas.
(b) Problemas de fadiga que podem resultar de
uso de tensões de trabalho mais altas e
(c) Tenacidade ao entalhe em relação a outros
elementos de controle de fratura, como fabricação,
C-2. PROJETO DE CONEXÕES SOLDADAS AWS D1.1/D1.1M:2010
436
procedimentos de inspeção, tensão de serviço e
temperatura de ambiente.
(4) Os Grupos IV e V incluem aços de construção
de resistência mais alta na faixa acima de 75 ksi até
limite de 100 ksi [515 MPa até 690 MPa]. Cuidado
extremo deveria ser exercido com respeito a controle de
hidrogênio para evitar trinca e aporte de calor para
evitar perda de resistência devido a excesso de têmpera.
Classe de Tenacidade. Classificações de tenacidade A,
B e C podem ser usadas para cobrir vários graus de
caráter crítico mostrados na matriz da Tabela C-2.7, e
como descrito abaixo:
Estrutura primária (ou de fratura crítica) cobre
elementos cuja falha seria catastrófica.
Estrutura secundária cobre os elementos cuja falha não
levaria a colapso catastrófico, condições sob as quais a
estrutura poderia ser ocupada ou capaz de danos
principais fora do local (por exemplo, poluição), ou
ambos.
Para estruturas de espaço-quadro tubular redundantes, a
fratura de uma única cinta ou de sua conexão de
extremidade provavelmente não levaria a colapso sob
cargas normais ou mesmo moderadamente severas. A
resistência é no entanto de alguma forma reduzida, e o
risco de colapso sob extrema sobrecarga aumenta
correspondentemente.
(1) Aços de classe C são aqueles que têm um
histórico de aplicação bem sucedida em estruturas
soldadas em temperaturas de serviço acima de
congelamento, mas para os quais testes de impacto não
são especificados. Tais aços são aplicáveis a membros
estruturais envolvendo espessura limitada, formação
moderada, baixa restrição, concentração de tensão
moderada, carga quase estática (tempo de levantamento
1 segundo ou mais) e redundância estrutural tal que uma
fratura isolada n~so seria catastrófica. Exemplos de tais
aplicações são estacas, cintas em quadros de espaço
redundantes, vigas de chão e colunas.
(2) Aços Classe B são adequados para uso onde
espessura, trabalho frio, restrição, concentração de
tensão e carga de impacto ou ausência de redundância,
ou ambos, indicam a necessidade de tenacidade ao
entalhe aprimorada. Quando testes de impacto são
especificados, aços Classe B deveriam exibir energia
CVN de 15 ft.lb [20 J] para Grupo I, 25 ft.lb [34 J]
para Grupo II, e 35 ft·lb [48 J] para Grupo III, à
temperatura de serviço antecipada mais baixa. Aços
listados aqui como Classe B podem geralmente atender
esses requisitos CVN a temperaturas que variam de 50º
F a 32º F [10º'C a 0º C].
Exemplos de tais aplicações são conexões em estrutura
secundária e apoio em estrutura primária. Quando testes
de impacto são especificados para aços de Classe B, um
teste de lote de aquecimento em conformidade com
ASTM A 673, Frequência H, é normalmente usado. No
entanto, não há garantia positiva de que tenacidade de
Classe B será presente em pedaços de aço que não são
testados.
(3) Aços Classe C são adequados para uso a
temperaturas de subcongelamento e para aplicações
críticas envolvendo combinações adversas dos fatores
citados acima. Aplicações críticas podem garantir teste
CVN a 36ºF – 54ºF [20ºC-30º] abaixo da temperatura
de serviço antecipada mais baixa. Essa margem extra de
tenacidade ao entalhe previne a propagação de fraturas
quebradiças a partir de descontinuidades grandes, e
fornece detenção de trincas em espessuras de várias
polegadas. Aços enumerados aqui como Classe A
podem geralmente atender esses requisitos CVN
declarados acima a temperaturas que variam de -4º F a -
40º F [-20ºC a -40º C]. A frequência de teste de
impacto para aços Classe A deveria estar em
conformidade com a especificação sob a qual o aço é
ordenado; na ausência de outros requisitos, teste de lote
de aquecimento pode ser usado.
C-2.27.2.1 Requisitos de Teste CVN. Esses
requisitos mínimos de tenacidade ao entalhe para
membros de tensão de seção pesada seguem as
provisões recentemente propostas por AISC. Eles têm
base em uma extensão considerável nos fenômenos de
mudança de temperatura descritos por Barsom
(Referência 16). O efeito de mudança de temperatura é
que materiais carregados estaticamente exibem níveis
similares de ductilidade como espécimes de teste CVN
ciclicamente carregados testados uma temperatura mais
alta. Para aços de resistência mais alta, Grupos III, IV e
V, a mudança de temperatura é menos efetiva, também
considerações de liberação de energia de deformação
mecânica de fratura sugeririam valores de energia
requerida mais altos. Testar aços laminados em uma
base de lote de aquecimento deixa exposto a variações
consideráveis no aquecimento, com testes CVN
mostrando mais propriedades de dispersão que de
resistência. No entanto, é melhor que nenhum teste.
C-2.27.2.2 ÚLTIMOS Requisitos. Os membros
principais em conexões tubulares estão sujeitos a
concentrações de tensão locais que podem levar a
deformações plásticas e de ruptura local na carga de
projeto. Durante o tempo de serviço, carga cíclica pode
iniciar trincas de fadiga, fazendo demandas adicionais
na ductilidade do aço. Essas demandas são
particularmente severas em metais de junta de parede
pesada projetados para puncionamentopuncionamento.
C-2.27.2.3 Tenacidade ao Entalhe Alterna-tiva.
As condições listadas em (1)-(4) abaixo deveriam ser
consideradas quando especificando requisitos de
tenacidade ao entalhe.
(1) Conexões Embaixo D'água. Para partes
embaixo d'água de plataformas marítimas do tipo
modelo redundantes, API recomenda que aço para
metais de junta (como metais de junta de perna de
jaqueta, cordas em juntas principais em X e K e
membros conectados em conexões projetadas como
sobrepostas) atendem um dos seguintes critérios de
tenacidade ao entalhe a temperaturas dadas na Tabela
C-2.8.
(a) Desempenho ininterrupto de Teste de Queda
de Peso NRL. (preferido)
C-2. PROJETO DE CONEXÕES SOLDADAS AWS D1.1/D1.1M:2010
437
(b) energia CVN: 15 ft.lb [20 J] para aços de
Grupo I, 25 ft.lb [34 J] para aços de Grupo II e 35 ft.lb
[4 J] para aços de Grupo III (teste transversal).
O critério para contenção de trinca NRL preferido segue
a partir do uso do Diagrama de Análise de Fratura
(Referência 17), e a partir de falhas de conexões
pesadas atendendo critérios de iniciação CVN de
mudança de temperatura. Para temperaturas de serviço
a 40ºF [4ºC] ou maiores, esses requisitos podem
normalmente ser atendidos usando qualquer dos aços de
Classe A.
(2) Serviço Atmosférico. Para conexões expostas a
temperaturas mais baixas e impacto possível, ou para
conexões críticas em qualquer local no qual é desejável
evitar quaisquer fraturas quebradiças, os aços de Classe
A mais tenazes deveriam ser considerados, por
exemplo, Especificação API. 2H, Gr. 42 ou Gr. 50.
Para aços de resistência mais alta e de ruptura de 50 ksi
[345 MPa], atenção especial deveria ser dada a
procedimentos de soldagem, para evitar degradação de
HAZs. Mesmo para o serviço menos exigente de
estruturas comuns, os seguintes grupos/classes de metal
base NÃO são recomendados para uso como membros
principais em conexões tubulares: IIC, IIIB, IIIC, N, e
V.
(3) Conexões Críticas. Para conexões críticas
envolvendo alta restrição (inclusive geometria adversa,
alto limite de escoamento, seções espessas ou qualquer
combinação dessas condições) e carga de tração
através-espessura em serviço, deveria ser dada
consideração ao uso de aço tendo aprimorado
propriedades através-espessura (direção Z), por
exemplo, Especificação API. 2H, Suplementos S4 e
S5, ou ASTMA 770.
(4) Extremidades de Cinta. Embora as
extremidades de cinta em conexões tubulares também
são sujeitas a concentração de tensão, as condições de
serviço não são tão severas quanto o membro principal
(ou metal de junta). Para cintas críticas, para as quais
fratura quebradiça seria catastrófico, deveria ser dada
consideração ao uso de extremidades de topo nas cintas
tendo a mesma classe de metal de junta, ou uma classe
mais baixa. Essa provisão não se aplica ao corpo de
cintas (entre conexões).
C-2. PROJETO DE CONEXÕES SOLDADAS AWS D1.1/D1.1M:2010
438
Tabela C-2.1
Estudo de Limites de Diâmetro/Espessura e Largura/Espessura Chata para
Tubos (ver C-2.21.1)
Para Fy em ksi
Para Projeto de Conexão AWS Para Projeto de Membro
Falha
Local
Ult Vp =
0,57 Fyo
Colapso
Geral no
Limite da
Corda da
Parede
Lateral
Curva
Cilindro
-Cone
1:4
Aplicabilidad
e
Das Regras
em 2 25
Projeto
Completo
de
Plástico
Momentos do
Plástico,Rotação
Limitada
Momento do
Limite ou
Limite
do
Comportamento
Elástico
LimiteAxial
Completo
Fórmula do
Limite de
Flambagem
Local
Tubos
Circulares
16 para
Conexõe
s em K
12 para T
& Y
9 para X
— 30
60 300
API
RP2A
—
√
AISC
Seção
de
Caixa
8 for K &
N
20 20
√
Para
Conexões de
Folga
√ √
√
a
( )
√
Sem Limite
AISI
Classe
A
7 for T &
K
√
Para
Sobreposição
√ √
AISI
Classe
B
Para Fy em MPa
Para Projeto de Conexão AWS Para Projeto de Membro
Falha
Local
Ult Vp =
0,57 Fyo
Colapso
Geral no
Limite da
Corda da
Parede
Lateral
Curva
Cilindro
-Cone
1:4
Aplicabilidad
e
Das Regras
em 2 25
Projeto
Completo
de
Plástico
Momentos do
Plástico,Rotação
Limitada
Momento ou
Limite do
Comportamento
Elástico
LimiteAxial
Completo
Limite das
Fórmulas
de
Ondulação
Locais
Circular
Tubes
112 para
Conexõe
s em K
84 para T
& Y
63 para X
— 210
60 300
API
RP2A
—
√
AISC
Box
Sections
56 para K
& N
15,4 140
√
Para
Conexões de
Folga
√ √
√
a
( )
√
Sem Limite
AISI
Classe
A
49 para T
& K
√
Para
Sobreposição
√ √
AISI
Classe
B
Notas:
1. AISI Classe A = formado a quente.
2. AISI Classe B = formado a frio e soldado.
3. Largura do plano deve ser tomada como D – 3t para projeto de membro de seção de caixa.
C-2. PROJETO DE CONEXÕES SOLDADAS AWS D1.1/D1.1M:2010
439
Tabela C-2.2
Fatores de Projeto Sugeridos (ver C-2.25.2)
Valor
Assumido para
K
SF para
Cargas
Estáticas
SF Onde
Aumento de
1/3
Aplica-se
Onde a quebra final de resistência da conexão - incluindo efeitos de tensão
endurecida etc. - pode ser utilizada;
Estruturas redundantes livres de falhas e projetos consistentes com 2.24.1
Membros críticos cujas falhas individuais seriam catastróficas
1,5a
1,5a
1,8
2,7
1,4
r,0
Aplicações de arquitetura onde deformações localizadas seriam objetáveis 1,0 1,7 1,3
a
Aplicável quando o membro principal, Fy, não é levado a exceder 2/3 da resistência à tração mínima especificada.
Tabela C-2.3
Valores de JD (ver C-2.25.2.5)
Modo de Falha Governante Flexão no Plano Flexão Fora do Plano
Falha da Corda da Parede de Plástico
η (β η )
(β η)
β (η β )
(η β)
Resistência de Cisalhamento do Material
da Corda
η (β η )
(β η)
β η β ( β β)
(η β )
Colapso Geral
η
Largura Efetiva do Membro de
Ramificação
η (β η )
(η β )
β η β ( β β)
(η β )
Aproximação Conservadora para
Qualquer Modo
η β
C-2. PROJETO DE CONEXÕES SOLDADAS AWS D1.1/D1.1M:2010
440
Tabela C-2.4
Placas de Aço Estrutural (ver C-2.27.2)
Grupo de
Elasticidade
Classe de
Tenacidade
Especificação e Grau
Limite de escoamento
Resistência à
Tração
ksi MPa ksi MPa
I C
ASTM A 36 (espessura até 2 in [50 mm])
ASTM A 131 Grau A (espessura até 1/2 in [12 mm])
36
34
250
235
58–80
58–71
400–
550
440–
490
I B
ASTM A 131 Graus B, D
ASTM A 573 Grau 65
ASTM A 709 Grau 36T2
34
35
36
235
240
250
58–71
65–77
58–80
400–
490
450–
550
400–
550
I A ASTM A 131 Graus CS, E 34 235 58–71
400–
490
II C
ASTM A 242 (espessura até 1/2 in [12 mm])
ASTM A 572 Grau 42 (espessura até 2 in [50 mm])
ASTM A 572 Grau 50 (espessura até 1/2 in [12 mm])a
ASTM A 588 (4 in [100 mm] e abaixo)
50
42
50
50
345
290
345
345
70
60
65
70 min
480
415
450
485
min
II B
ASTM A 709 Graus 50T2, 50T3
ASTM A 131 Grau AH32
ASTM A 131 Grau AH36
ASTM A 808 (resistência varia com a espessura)
ASTM A 516 Grau 65
50
45,5
51
42–50
35
345
315
350
290–345
240
65
68–85
71–90
60–65
65–85
450
470–
585
490–
620
415–
450
450–
585
II A
API Espec 2H Grau 42
Grau 50 (espessura até 2-1/2 in [65
mm])
(espessura acima de 2-1/2 in
[65 mm])
API Espec 2W Grau 42 (espessura até 1 in [25 mm])
(espessura acima de 1 in [25
mm])
Grau 50 (espessura até 1 in [25 mm])
(espessura acima de 1 in [25
mm])
Grau 50T(espessura até de 1 in [25
mm])
(espessura acima de 1 in [25
mm])
API Espec 2Y Grau 42 (espessura até 1 in [25 mm])
(espessura acima de 1 in [25
mm])
Grau 50 (espessura até 1 in [25 mm])
(espessura acima de 1 in [25
mm])
Grau 50T(espessura até de 1 in [25
mm])
(espessura acima de 1 in [25
mm])
ASTM A 131 Graus DH32, EH32
Graus DH36, EH36
ASTM A 537 Classe I (espessura até 2-1/2 in [65
mm])
ASTM A 633 Grau A
Graus C, D
ASTM A 678 Grau A
42
50
47
42–67
42–62
50–75
50–70
50–80
50–75
42–67
42–62
50–75
50–70
50–80
50–75
45 5
51
50
42
50
50
290
345
325
290–462
290–427
345–517
345–483
345–522
345–517
290–462
290–462
345–517
345–483
345–572
345–517
315
350
345
290
345
345
62–80
70–90
70–90
62
62
65
65
70
70
62
62
65
65
70
70
68–85
71–90
70–90
63–83
70–90
70–90
430–
550
483–
620
483–
620
427
427
448
448
483
483
427
427
448
448
483
483
470–
585
490–
620
485–
620
435–
570
485–
620
485–
620
III C ASTM A 633 Grau E 60 415 80–100
550–
690
III A
ASTM A 537 Classe II (espessura até 2-1/2 in [65
mm])
ASTM A 678 Grau B
API Espec 2W Grau 60 (espessura até 1 in [25 mm])
(espessura acima de 1 in [25
60
60
60–90
60–85
60–90
415
415
414–621
414–586
414–621
80–100
80–100
75
75
75
550–
690
550–
690
517
C-2. PROJETO DE CONEXÕES SOLDADAS AWS D1.1/D1.1M:2010
441
mm])
API Espec 2Y Grau 60 (espessura até 1 in [25 mm])
(espessura acima de 1 in [25
mm])
ASTM A 710 Grau A Classe 3
(calor tratado a resfriamento e precipitação)
Através de 2 in [50 mm]
2 in [50 mm] até 4 in [100mm]
60–85
75
65
60
414–586
515
450
415
75
85
75
70
517
517
517
585
515
485
IV C
ASTM A 514 (espessura acima de 2-1/2 in [65 mm])
ASTM A 517 (espessura acima de 2-1/2 in [65 mm]) 90
90
620
620
110–
130
110–
130
760–
890
760–
896
V C
ASTM A 514 (espessura até 2-1/2 in [65 mm])
ASTM A 517 (espessura até 2-1/2 in [65 mm]) 100
100
690
690
110–
130
110–
130
760–
895
760–
895
a
Para Espessura de 2 in [50 mm] para Tipo 1 ou 2, Prática de Grão Fino Desativada
Observação: Ver lista de Especificações Referidas para os títulos completos do exposto acima.
C-2. PROJETO DE CONEXÕES SOLDADAS AWS D1.1/D1.1M:2010
442
Tabela C-2.5
Canos de Aço Estrutural e Moldes Tubulares (ver C-2.27.2)
Grupo Classe Especificação e Grau
Limite de escoamento
Resistência à
Tração
ksi MPa ksi MPa
I C
API Espec 5L Grau Ba
ASTM A 53 Grau B
ASTM A 139 Grau B
ASTM A 500 Grau A (redondo)
(moldado)
ASTM A 500 Grau B (redondo)
(moldado)
ASTM A 501 (redondo e moldado)
API Espec 5L Grau X42 (expansão max. de
resfriamento 2%)
35
35
35
33
39
42
46
36
42
240
240
240
230
270
290
320
250
290
60
60
60
45
45
58
58
58
60
415
415
415
310
310
400
400
400
415
I B
ASTM A 106 Grau B (normalizado)
ASTM A 524 Grau I (até 3/8 in [10 mm] w.t.)
Grau II (acima de 3/8 in [10 mm]
w.t.)
35
35
30
240
240
205
60
60
55–80
415
415
380–550
I A
ASTM A 333 Grau 6
ASTM A 334 Grau 6
35
35
240
240
60
60
415
415
II C
API Espec 5L Grau X42 (expansão max. de
resfriamento 2%)
ASTM A 618
52
50
360
345
66
70
455
485
II B API Espec 5L Grau X52 com SR5, SR6, ou SR8 52 360 66 455
III C
ASTM A 595 Grau A (formas afiladas)
ASTM A 595 Grau B e C (formas afiladas)
55
60
380
410
65
70
450
480
a
Sem costura ou com solda de costura longitudinal.
Notas:
1. Ver lista de Especificações Referenciadas para títulos completos do acima exposto.
2. Cano estrutural também deve ser construído de acordo as Espec. API 2B, ASTM A 139+, ASTM A 252+, ou ASTM A 671 usando
graus de placa estrutural listados na Tabela C-2.4 exceto que o teste hidrostático deve ser omitido.
3. Com soldas longitudinais e juntas de topo circunferenciais.
Tabela C-2.6
Moldes de Aço Estrutural (ver C-2.27.2)
Grupo Classe Especificação e Grau
Limite de escoamento
Resistência à
Tração
ksi MPa ksi MPa
I C
ASTM A 36 (espessura até 2 in [50 mm])
ASTM A 131 Grau A (espessura até 1/2 in [12
mm])
36
34
250
235
58–80
58–80
400–550
400–550
I B ASTM A 709 Grau 36T2 36 250 58–80 400–550
II C
ASTM A 572 Grau 42 (espessura até to 2 in [50
mm])
ASTM A 572 Grau 50 (espessura até 1/2 in [12
mm])
ASTM A 588 (espessura até 2 in [50 mm])
42
50
50
290
345
345
60
65
70
415
480
485
II B
ASTM A 709 Graus 50T2, 50T3
ASTM A 131 Grau AH32
ASTM A 131 Grau AH36
50
46
51
345
320
360
65
68–85
71–90
450
470–585
490–620
Notas:
1. Para Espessura de 2 in [50 mm] para Tipo 1 ou 2 Desativado, Prática de Grão Fino
2. Esta tabela é parte do comentário sobre considerações de resistência para estruturas tubulares (ou compostos de tubulares e outros
formas), ex., usados para plataformas marítimas. Isso não implica que formas não listadas não se encaixam em outras aplicações.
C-2. PROJETO DE CONEXÕES SOLDADAS AWS D1.1/D1.1M:2010
443
C-2. PROJETO DE CONEXÕES SOLDADAS AWS D1.1/D1.1M:2010
444
Tabela C-2.7
Matriz de Classificação para Aplicações(ver C-2.27.2)
Tabela C-2.8
Condições de Teste CVN (ver C-2.27.2.2)
Diâmetro / Espessura Temperatura de Teste Condição de Teste
Acima de 30
20–30
Abaixo de 20
36 F [20 C] abaixo LASTa
54 F [30 C] abaixo LAST
18 F [10 C] abaixo LAST
Placa Plana
Placa Plana
Como construída
C-2. PROJETO DE CONEXÕES SOLDADAS AWS D1.1/D1.1M:2010
445
Figura C-2.1 – Equilíbrio de Solda de Filete sobre o Ângulo do Eixo Neutro
(ver C-2.6.2)
Figura C-2.2 – Planos de Cisalhamento para Soldas em Chanfro e de Filete
(ver C-2.6.4)
C-2. PROJETO DE CONEXÕES SOLDADAS AWS D1.1/D1.1M:2010
446
Figura C-2.3 – Carga Excêntrica
(ver C-2.6.4.2 e C-2.6.4.3)
Figura C-2.4 – Relação de Deformação de Carga
para Soldas (ver C-2.6.4.2 e C-2.6.4.3)
C-2. PROJETO DE CONEXÕES SOLDADAS AWS D1.1/D1.1M:2010
447
Elemento 1: Θ = 45; L = 1,41; C = 1,29
Elemento 2: Θ = 0; L = 1; C = 0,825
Elemento 3: Θ = 90; L = 1; C = 1,5
Resistência Permissível = D(0,707)(0,3FEXX)(0,0625)Σ
Ci Li
Σ
CiLi = [1,29(1,41) + 0,825(1) + 1,50(1)]
D = tamanho da solda em 16ths
Figura C-2.5 – Exemplo de um Grupo de Solda Obliquamente Carregado
Figura C-2.6 – Solução Gráfica da Capacidade de um Grupo de Solda Obliquamente Carregada
AWS
D1.1/D1.1M:2010
C-2.
PROJETO
DE
CONEXÕES
SOLDADAS
AWS D1.1/D1.1M:2010 C-2. PROJETO DE CONEXÕES SOLDADAS
449
Figura C-2.7 - Juntas Sobrepostas Soldadas em Solda de Filete Única (ver C-
2.9.1.1)
Figura C-2.8 - Ilustrações de Tensões do Membro de Ramificação
Correspondentes ao Modo de Carga (ver C-2.21.6.2)
C-2. PROJETO DE CONEXÕES SOLDADAS AWS D1.1/D1.1M:2010
450
Observação: Requisitos mínimos para solda externa em conexões
tubulares designadas para corresponder a 2.21.6.6(1).
Observação: Indicação MPI, convexidade excessiva,
ou mordedura nas extremidades dos passes de solda
ou entre passes adjacentes devem ser corrigidos por
retifica
AWS D1.1-D1.1M-Codigo de Soldagem Estrutural-Aço-Portugues-2010.pdf
AWS D1.1-D1.1M-Codigo de Soldagem Estrutural-Aço-Portugues-2010.pdf
AWS D1.1-D1.1M-Codigo de Soldagem Estrutural-Aço-Portugues-2010.pdf
AWS D1.1-D1.1M-Codigo de Soldagem Estrutural-Aço-Portugues-2010.pdf
AWS D1.1-D1.1M-Codigo de Soldagem Estrutural-Aço-Portugues-2010.pdf
AWS D1.1-D1.1M-Codigo de Soldagem Estrutural-Aço-Portugues-2010.pdf
AWS D1.1-D1.1M-Codigo de Soldagem Estrutural-Aço-Portugues-2010.pdf
AWS D1.1-D1.1M-Codigo de Soldagem Estrutural-Aço-Portugues-2010.pdf
AWS D1.1-D1.1M-Codigo de Soldagem Estrutural-Aço-Portugues-2010.pdf
AWS D1.1-D1.1M-Codigo de Soldagem Estrutural-Aço-Portugues-2010.pdf
AWS D1.1-D1.1M-Codigo de Soldagem Estrutural-Aço-Portugues-2010.pdf
AWS D1.1-D1.1M-Codigo de Soldagem Estrutural-Aço-Portugues-2010.pdf
AWS D1.1-D1.1M-Codigo de Soldagem Estrutural-Aço-Portugues-2010.pdf
AWS D1.1-D1.1M-Codigo de Soldagem Estrutural-Aço-Portugues-2010.pdf
AWS D1.1-D1.1M-Codigo de Soldagem Estrutural-Aço-Portugues-2010.pdf
AWS D1.1-D1.1M-Codigo de Soldagem Estrutural-Aço-Portugues-2010.pdf
AWS D1.1-D1.1M-Codigo de Soldagem Estrutural-Aço-Portugues-2010.pdf
AWS D1.1-D1.1M-Codigo de Soldagem Estrutural-Aço-Portugues-2010.pdf
AWS D1.1-D1.1M-Codigo de Soldagem Estrutural-Aço-Portugues-2010.pdf
AWS D1.1-D1.1M-Codigo de Soldagem Estrutural-Aço-Portugues-2010.pdf
AWS D1.1-D1.1M-Codigo de Soldagem Estrutural-Aço-Portugues-2010.pdf
AWS D1.1-D1.1M-Codigo de Soldagem Estrutural-Aço-Portugues-2010.pdf
AWS D1.1-D1.1M-Codigo de Soldagem Estrutural-Aço-Portugues-2010.pdf
AWS D1.1-D1.1M-Codigo de Soldagem Estrutural-Aço-Portugues-2010.pdf
AWS D1.1-D1.1M-Codigo de Soldagem Estrutural-Aço-Portugues-2010.pdf
AWS D1.1-D1.1M-Codigo de Soldagem Estrutural-Aço-Portugues-2010.pdf
AWS D1.1-D1.1M-Codigo de Soldagem Estrutural-Aço-Portugues-2010.pdf
AWS D1.1-D1.1M-Codigo de Soldagem Estrutural-Aço-Portugues-2010.pdf
AWS D1.1-D1.1M-Codigo de Soldagem Estrutural-Aço-Portugues-2010.pdf
AWS D1.1-D1.1M-Codigo de Soldagem Estrutural-Aço-Portugues-2010.pdf
AWS D1.1-D1.1M-Codigo de Soldagem Estrutural-Aço-Portugues-2010.pdf
AWS D1.1-D1.1M-Codigo de Soldagem Estrutural-Aço-Portugues-2010.pdf
AWS D1.1-D1.1M-Codigo de Soldagem Estrutural-Aço-Portugues-2010.pdf
AWS D1.1-D1.1M-Codigo de Soldagem Estrutural-Aço-Portugues-2010.pdf
AWS D1.1-D1.1M-Codigo de Soldagem Estrutural-Aço-Portugues-2010.pdf
AWS D1.1-D1.1M-Codigo de Soldagem Estrutural-Aço-Portugues-2010.pdf
AWS D1.1-D1.1M-Codigo de Soldagem Estrutural-Aço-Portugues-2010.pdf
AWS D1.1-D1.1M-Codigo de Soldagem Estrutural-Aço-Portugues-2010.pdf
AWS D1.1-D1.1M-Codigo de Soldagem Estrutural-Aço-Portugues-2010.pdf
AWS D1.1-D1.1M-Codigo de Soldagem Estrutural-Aço-Portugues-2010.pdf
AWS D1.1-D1.1M-Codigo de Soldagem Estrutural-Aço-Portugues-2010.pdf
AWS D1.1-D1.1M-Codigo de Soldagem Estrutural-Aço-Portugues-2010.pdf
AWS D1.1-D1.1M-Codigo de Soldagem Estrutural-Aço-Portugues-2010.pdf
AWS D1.1-D1.1M-Codigo de Soldagem Estrutural-Aço-Portugues-2010.pdf
AWS D1.1-D1.1M-Codigo de Soldagem Estrutural-Aço-Portugues-2010.pdf
AWS D1.1-D1.1M-Codigo de Soldagem Estrutural-Aço-Portugues-2010.pdf
AWS D1.1-D1.1M-Codigo de Soldagem Estrutural-Aço-Portugues-2010.pdf
AWS D1.1-D1.1M-Codigo de Soldagem Estrutural-Aço-Portugues-2010.pdf
AWS D1.1-D1.1M-Codigo de Soldagem Estrutural-Aço-Portugues-2010.pdf
AWS D1.1-D1.1M-Codigo de Soldagem Estrutural-Aço-Portugues-2010.pdf
AWS D1.1-D1.1M-Codigo de Soldagem Estrutural-Aço-Portugues-2010.pdf
AWS D1.1-D1.1M-Codigo de Soldagem Estrutural-Aço-Portugues-2010.pdf
AWS D1.1-D1.1M-Codigo de Soldagem Estrutural-Aço-Portugues-2010.pdf
AWS D1.1-D1.1M-Codigo de Soldagem Estrutural-Aço-Portugues-2010.pdf
AWS D1.1-D1.1M-Codigo de Soldagem Estrutural-Aço-Portugues-2010.pdf
AWS D1.1-D1.1M-Codigo de Soldagem Estrutural-Aço-Portugues-2010.pdf
AWS D1.1-D1.1M-Codigo de Soldagem Estrutural-Aço-Portugues-2010.pdf
AWS D1.1-D1.1M-Codigo de Soldagem Estrutural-Aço-Portugues-2010.pdf
AWS D1.1-D1.1M-Codigo de Soldagem Estrutural-Aço-Portugues-2010.pdf
AWS D1.1-D1.1M-Codigo de Soldagem Estrutural-Aço-Portugues-2010.pdf
AWS D1.1-D1.1M-Codigo de Soldagem Estrutural-Aço-Portugues-2010.pdf
AWS D1.1-D1.1M-Codigo de Soldagem Estrutural-Aço-Portugues-2010.pdf
AWS D1.1-D1.1M-Codigo de Soldagem Estrutural-Aço-Portugues-2010.pdf
AWS D1.1-D1.1M-Codigo de Soldagem Estrutural-Aço-Portugues-2010.pdf
AWS D1.1-D1.1M-Codigo de Soldagem Estrutural-Aço-Portugues-2010.pdf
AWS D1.1-D1.1M-Codigo de Soldagem Estrutural-Aço-Portugues-2010.pdf
AWS D1.1-D1.1M-Codigo de Soldagem Estrutural-Aço-Portugues-2010.pdf
AWS D1.1-D1.1M-Codigo de Soldagem Estrutural-Aço-Portugues-2010.pdf
AWS D1.1-D1.1M-Codigo de Soldagem Estrutural-Aço-Portugues-2010.pdf
AWS D1.1-D1.1M-Codigo de Soldagem Estrutural-Aço-Portugues-2010.pdf
AWS D1.1-D1.1M-Codigo de Soldagem Estrutural-Aço-Portugues-2010.pdf
AWS D1.1-D1.1M-Codigo de Soldagem Estrutural-Aço-Portugues-2010.pdf
AWS D1.1-D1.1M-Codigo de Soldagem Estrutural-Aço-Portugues-2010.pdf
AWS D1.1-D1.1M-Codigo de Soldagem Estrutural-Aço-Portugues-2010.pdf
AWS D1.1-D1.1M-Codigo de Soldagem Estrutural-Aço-Portugues-2010.pdf
AWS D1.1-D1.1M-Codigo de Soldagem Estrutural-Aço-Portugues-2010.pdf
AWS D1.1-D1.1M-Codigo de Soldagem Estrutural-Aço-Portugues-2010.pdf
AWS D1.1-D1.1M-Codigo de Soldagem Estrutural-Aço-Portugues-2010.pdf
AWS D1.1-D1.1M-Codigo de Soldagem Estrutural-Aço-Portugues-2010.pdf
AWS D1.1-D1.1M-Codigo de Soldagem Estrutural-Aço-Portugues-2010.pdf
AWS D1.1-D1.1M-Codigo de Soldagem Estrutural-Aço-Portugues-2010.pdf
AWS D1.1-D1.1M-Codigo de Soldagem Estrutural-Aço-Portugues-2010.pdf
AWS D1.1-D1.1M-Codigo de Soldagem Estrutural-Aço-Portugues-2010.pdf
AWS D1.1-D1.1M-Codigo de Soldagem Estrutural-Aço-Portugues-2010.pdf
AWS D1.1-D1.1M-Codigo de Soldagem Estrutural-Aço-Portugues-2010.pdf
AWS D1.1-D1.1M-Codigo de Soldagem Estrutural-Aço-Portugues-2010.pdf

AWS D1.1-D1.1M-Codigo de Soldagem Estrutural-Aço-Portugues-2010.pdf

  • 2.
    Isenção de Responsabilidade Estapublicação é traduzida a partir da versão em língua inglesa e, apesar, dos grandes esforços para garantir uma tradução acurada, a AWS não oferece nenhuma garantia de sua exatidão ou completude, nem é a AWS responsável por quaisquer erros, omissões ou ambiguidades que por virtude apareçam neste documento por resultado de sua tradução. O texto em língua inglesa é a única versão oficial e deve ser a versão referida em casos de litígio. Disclaimer This publication is translated from the original English version and while reasonable efforts have been made to ensure an accurate translation, AWS makes no warranty as to precision or completeness, nor is AWS responsible for any errors, omission, or ambiguities appearing in this document as a result of the translation. The English text is the only official version and shall be referred to in cases of dispute.
  • 3.
    AWS D1.1/D1.1M:2010 Tradução de: StructualWelding Code – Steel Aprovado pelo Instituto Nacional Americano de Padrões American National Standards Institute 11 de março de 2010 Código de Soldagem Estrutural — Aço 22ª Edição Substitui AWS D1.1/D1.1M:2008 Preparado pelo Comitê D1 de Soldagem Estrutural da Sociedade Americana de Soldagem (AWS) D1 Sob direção do Comitê de Atividades Técnicas da AWS Aprovado pela Diretoria da AWS Resumo Este código aborda os requisitos de soldagem para qualquer tipo de estrutura soldada feita com aços construtivos de carbono e baixa liga. As cláusulas 1 a 8 constituem um corpo de regras para a regulamentação de solda nas construções com aço. Neste código existem nove anexos normativos e doze informativos. Comentários sobre o código estão inclusosnestedocumento.
  • 4.
    AWS D1.1/D1.1M:2010 140 Livro deNorma Internacional Número: 978-0-87171-772-6 Sociedade Americana de Soldagem 550 N.W. LeJeune Road, Miami, FL 33126 EUA © 2010 Sociedade Americana de Soldagem Todos os direitos reservados Direitos de Reprodução. Nenhuma parte desta norma pode ser reproduzida, armazenada em sistema de recuperação ou transmitida de qualquer forma, inclusive mecânica, fotocópia, gravação ou qualquer outra, sem a autorização prévia por escrito dos detentores dos direitos autorais. Autorização para fotocopiar itens apenas para uso interno, pessoal ou educacional em aula ou o uso interno, pessoal ou educacional em aula de clientes específicos é garantido pela Sociedade Americana de Soldagem contanto que as taxas apropriadas sejam pagas ao Centro de Esclarecimento de Direitos Autorais - Copyright Clearance Center, 222 Rosewood Drive, Danvers, MA, 01923, EUA, tel: 00 1 (978) 750-8400; Internet:<www.copyright.com>.
  • 5.
    AWS D1.1/D1.1M:2010 iii Declaração sobreo Uso dos Padrões da Sociedade Americana de Soldagem Todos os padrões (códigos, especificações, práticas recomendadas, métodos, classificações e guias) da Sociedade Americana de Soldagem (AWS) são padrões de consenso voluntário que foram desenvolvidos de acordo com as regras do Instituto Nacional Americano de Padrões (American National Standards Institute – ANSI). Quando os Padrões Nacionais Americanos da AWS são incorporados ou fazem parte de documentos que estão inclusos nas leis e regulamentações estaduais ou federais, ou em regulamentações de outros órgãos governamentais, suas provisões carregam a autoridade legal completa do estatuto. Em tais casos, quaisquer alterações nestes padrões da AWS precisam ser aprovadas pelo órgão de governo tendo jurisdição estatutária antes de se tornarem partes dessas leis e regulamentações. Em todos os casos, estes padrões carregam a autoridade legal completa do contrato ou outro documento que invoca os padrões AWS. Onde existe esta relação contratual, alterações ou desvios nos requisitos de uma norma AWS precisam ser por acordo entre as partes contratantes. Os Padrões Nacionais Americanos da AWS são desenvolvidos através de um processo de desenvolvimento de padrões por consenso que reúne voluntários representando vários pontos de vista e interesses para atingir um consenso. Embora a AWS administre o processo e estabeleça regras para promover justiça no desenvolvimento do consenso, ela não testa, avalia ou verifica independentemente a precisão de quaisquer informações ou a integridade de quaisquer julgamentos contidos em seus padrões. A AWS renuncia à responsabilidade por quaisquer danos a pessoas ou propriedade, ou outros prejuízos de qualquer natureza, sejam especiais, indiretos, consequenciais ou compensatórios, resultando direta ou indiretamente da publicação, uso ou confiança nesta norma. A AWS também não garante a precisão ou completude de quaisquer informações publicadas aqui. Ao lançar e tornar esta norma disponível, a AWS não está tomando a seu cargo prestar serviços profissionais ou outros para, ou em nome de, qualquer pessoa ou entidade, nem está tomando a seu cargo realizar qualquer obrigação devida por qualquer pessoa ou entidade a outra pessoa. Qualquer pessoa usando estes documentos deveria confiar em seu próprio julgamento independente ou, conforme apropriado, procurar o aconselhamento de um profissional competente para determinar o exercício de cuidados razoáveis em qualquer dada circunstância. É presumido que o uso desta norma e suas provisões está confiado a equipes apropriadamente qualificadas e competentes. Esta norma pode ser substituído pelo lançamento de novas edições. O usuário deve assegurar-se de que tem a última edição. A publicação desta norma não autoriza a infração de qualquer patente ou nome comercial. Os usuários desta norma aceitam toda e qualquer responsabilidade pela infração de quaisquer itens de patente ou nome comercial. A AWS renuncia à responsabilidade pela infração de qualquer patente ou nome comercial de produto resultante do uso desta norma. Por fim, a AWS não monitora, policia, ou faz cumprir a conformidade com esta norma, nem tem os poderes para fazê-lo. Por ocasiões, texto, tabelas, ou figuras são impressos incorretamente, constituindo erratas. Tais erratas, quando descobertas, são postadas na página da web da AWS (www.aws.org). Interpretações oficiais de qualquer tipo de quaisquer requisitos técnicos nesta norma só podem ser obtidas mediante o envio de uma requisição por escrito para o comitê técnico apropriado. Tal requisição deve ser endereçada à Sociedade Americana de Soldagem, Aos Cuidados de: Diretor Executivo, Divisão de Serviços Técnicos, 550 N.W. LeJeune Road, Miami, FL, 33126, EUA (ver Anexo O).Com respeito a investigações técnicas relativas aos padrões da AWS, opiniões orais a respeitos dos padrões da AWS podem ser fornecidas. Essas opiniões são oferecidas apenas como uma conveniência para usuários desta norma, e não constituem aconselhamento profissional. Essas opiniões apenas representam as opiniões pessoais de indivíduos particulares que as fornecem. Esses indivíduos não falam em nome da AWS, nem essas opiniões orais constituem opiniões oficiais ou não ou interpretações da AWS. Além disso, opiniões orais são informais e não deveriam ser usadas como uma alternativa a uma interpretação oficial. Esta norma está sujeita à revisão do Comitê D1 de Soldagem Estrutural a qualquer momento. Ele precisa ser revisado a cada cinco anos, e precisa ser ou reafirmado ou recolhido. Comentários (recomendações, acréscimos ou exclusões)e quaisquer dados pertinentes que possam ser úteis para melhorar esta norma são requisitados e devem ser endereçados ao Escritório Central da AWS. Tais comentários receberão consideração cuidadosa do Comitê D1 de Soldagem Estrutural e o autor do comentário será informado da resposta do Comitê aos comentários. Convidados são bem-vindos para assistir a todas as reuniões do Comitê D1 de Soldagem Estrutural para expressar seus comentários verbalmente. Procedimentos para apelar de uma decisão adversa a respeito de qualquer destes comentários são fornecidos nas Regras de Operação do Comitê de Atividades Técnicas. Uma cópia destas Regras pode ser obtida na Sociedade Americana de Soldagem, 550N.W. LeJeune Road, Miami, FL 33126, EUA.
  • 6.
    AWS D1.1/D1.1M:2010 140 Esta páginaestá em branco intencionalmente.
  • 7.
    AWS D1.1/D1.1M:2010 v Dedicatória O ComitêD1 de Soldagem Estrutural e o Subcomitê D1Q de Estruturas em Aço humildemente dedicam esta edição do Código de Soldagem Estrutural – Aço, D1.1/D1.1M, à memória de dois antigos voluntários. FRED C. BREISMEISTER 1940–2009 Desde 1985, Fred incansavelmente ajudou a melhorar vários Códigos de Soldagem estrutural D1, inclusiveD1.1, Structural Welding Code – Steel, D1.6, Structural Welding Code – Stainless Steele mais recentemente D1.8, Structural Welding Code – Seismic Supplement. Por muitos anos, ele presidiu o Subcomitê de Pré-Qualificação D1B. O Comitê D1 irá sem dúvida sentir falta de um grande amigo e contribuinte da equipe. DONALD A. SHAPIRA 1956–2009 Desde 1996, Don contribuiu entusiasticamente com vários Códigos D1, inclusiveD1.1, Structural Welding Code, D1.6, Structural Welding Code – Stainless Steel e o Código de Soldagem Estrutural – Suplemento Sísmico, D1.8, Structural Welding Code – Seismic Supplement. Como diretor do Subcomitê D1K, ele supervisionou a última publicação de D1.6, Structural Welding Code – Stainless Steel. O Comitê D1 lembra os esforços de Don com carinho e apreciação.
  • 8.
    AWS D1.1/D1.1M:2010 140 Esta páginaestá em branco intencionalmente.
  • 9.
    AWS D1.1/D1.1M:2010 vii Equipe Comitê D1de Soldagem Estrutural da AWS D. K. Miller, Presidente The Lincoln Electric Company A. W. Sindel, 1º Vice-Presidente Alstom Power, Incorporated T. L. Niemann, 2º Vice-Presidente Minnesota Department of Transportation S. Morales, Secretário American Welding Society N. J. Altebrando STV, Incorporated F. G. Armao The Lincoln Electric Company E. L. Bickford Acute Technological Services B. M. Butler Walt Disney World Company H. H. Campbell III Pazazu Engineering L. E. Collins Team Industries, Incorporated R. B. Corbit Exelon Nuclear Corporation R. A. Dennis Consultor M. A. Grieco Massachusetts Department of Transportation C. R. Hess High Steel Structures, Incorporated (Aposentado) C. W. Holmes Modjeski and Masters, Incorporated J. J. Kenney Shell International E & P J. H. Kiefer ConocoPhillips Company V. Kuruvilla Genesis Quality Systems J. Lawmon American Engineering & Manufacturing, Incorporated N. S. Lindell Inspectech Incorporated D. R. Luciani Canadian Welding Bureau S. L. Luckowski Department of the Army P. W. Marshall MHP Systems Engineering M. J. Mayes Mayes Testing Engineers, Incorporated D. L. McQuaid D. L. McQuaid and Associates, Incorporated R. D. Medlock High Steel Structures, Incorporated J. Merrill MACTEC, Incorporated J. B. Pearson, Jr. LTK Engineering Services D. C. Phillips Hobart Brothers Company D. D. Rager Rager Consulting, Incorporated T. J. Schlafly American Institute of Steel Construction D. R. Scott PSI (Aposentado) R. E. Shaw, Jr. Steel Structures Technology Center, Incorporated R. W. Stieve Greenman-Pederson, Incorporated P. J. Sullivan Massachusetts Department of Transportation (Aposentado) M. M. Tayarani Massachusetts Department of Transportation K. K. Verma Federal Highway Administration B. D. Wright Advantage Aviation Technologies Conselheiros do Comitê D1 de Soldagem Estrutural W. G. Alexander WGAPE E. M. Beck MACTEC, Incorporated
  • 10.
    AWS D1.1/D1.1M:2010 140 O. W.Blodgett The Lincoln Electric Company (Aposentado) M. V. Davis Consultor Conselheiros do Comitê D1 de Soldagem Estrutural (Continuação) G. L. Fox Consultor G. J. Hill G. J. Hill and Associates, Incorporated M. L. Hoitomt Hoitomt Consulting Services D. R. Lawrence II Butler Manufacturing Company (Aposentado) W. A. Milek, Jr. Consultor J. E. Myers Consultor J. W. Post J. W. Post and Associates, Incorporated Subcomitê D1Q em Aço da AWS D. D. Rager, Presidente Rager Consulting, Incorporated T. Schlafly, Vice-Presidente American Institute of Steel Construction S. Morales, Secretário American Welding Society N. J. Altebrando STV, Incorporated M. Bernasek C-spec E. L. Bickford Acute Technological Services B. M. Butler Walt Disney World Company J. W. Cagle C P Buckner Steel Erection, Incorporated W. P. Capers Walt Disney World Company H. H. Campbell III Pazazu Engineering L. E. Collins Team Industries, Incorporated R. A. Dennis Consultor D. A. Dunn PSI K. R. Fogleman Valmont Industries J. Guili Stud Welding Associates M. J. Jordan Johnson Plate and Tower Fabrication J. J. Kenney Shell International E & P J. H. Kiefer ConocoPhillips Company L. A. Kloiber LeJeune Steel Company S. W. Kopp High Steel Structures J. E. Koski Stud Welding Products, Incorporated V. Kuruvilla Genesis Quality Systems K. Landwehr Schuff Steel Company D. R. Luciani Canadian Welding Bureau P. W. Marshall MHP Systems Engineering R. P. Marslender Kiewit Offshore Services, LTD G. S. Martin GE Energy M. J. Mayes Mayes Testing Engineers, Incorporated R. D. Medlock High Steel Structures, Incorporated J. Merrill MACTEC, Incorporated J. I. Miller Helix Energy Solutions S. P. Moran PDM Bridge LLC
  • 11.
    AWS D1.1/D1.1M:2010 ix J. C.Nordby Entergy J. A. Packer University of Toronto F. J. Palmer Steel Tube Institute D. R. Scott PSI (Aposentado) R. E. Shaw, Jr. Steel Structures Technology Center, Incorporated A. W. Sindel Alstom Power, Incorporated R. W. Stieve Greenman-Pederson, Incorporated S. J. Thomas VP Buildings, Incorporated W. A. Thornton Cives Corporation R. H. R. Tide Wiss, Janney, Elstner Associates P. Workman Tru-Weld Conselheiros do Comitê D1Q de Aço U. W. Aschemeier H. C. Nutting/A Terracon Company H. A. Chambers Nelson Stud Welding R. B. Corbi Exelon Nuclear Corporation H. E. Gilmer Texas Department of Transportation M. A. Grieco Massachusetts Department of Transportation M. J. Harker Idaho National Laboratory C. W. Hayes The Lincoln Electric Company C. R. Hess High Steel Structures G. J. Hill G. J. Hill and Associates, Incorporated C. W. Holmes Modjeski and Masters, Incorporated W. Jaxa-Rozen Bombardier Transportation D. R. Lawrence II Butler Manufacturing Company (Aposentado) N. S. Lindell Inspectech Consulting and Testing H. W. Ludewig Caterpillar, Incorporated D. L. McQuaid D. L. McQuaid and Associates, Incorporated J. K. Mieseke PDM Bridge, Eau Clair Wisc W. A. Milek, Jr. Consultor D. K. Miller The Lincoln Electric Company L. Muir Cives Steel Company J. B. Pearson, Jr. LTK Engineering Services D. C. Phillips ITW, Hobart Brothers Company J. W. Post J. W. Post and Associates, Incorporated J. Ross U.S. Army Corps of Engineers P. J. Sullivan Massachusetts Department of Transportation (Aposentado) M. M. Tayarani Massachusetts Department of Transportation J. L. Uebele Waukesha City Tech College K. K. Verma Federal Highway Administration D. G. Yantz Canadian Welding Bureau O. Zollinger Ohmstede Ltd. Subcomitê D1Q Grupo de Tarefas em Projeto J. J. Kenney, Presidente Shell International E & P W. P. Capers,Vice-Presidente Walt Disney World Company
  • 12.
    AWS D1.1/D1.1M:2010 x N. J.Altebrando STV, Incorporated B. M. Butler Walt Disney World Company T. Green Wiss, Janney, Elstner Associates W. Jaxa-Rozen Bombardier Transportation M. J. Jordan Johnson Plate and Tower Fabrication L. A. Kloiber LeJeune Steel Company P. W. Marshal MHP Systems Engineering L. Muir Cives Steel Company J. A. Packer University of Toronto F. J. Palmer Steel Tube Institute J. B. Pearson, Jr. LTK Engineering Services T. J. Schlafly American Institute of Steel Construction R. E. Shaw, Jr. Steel Structures Technology Center, Incorporated S. J. Thomas VP Buildings, Incorporated R. H. R. Tide Wiss, Janney, Elstner Associates Conselheiros do Subcomitê D1Q Grupo de Tarefas em Projeto O. W. Blodgett The Lincoln Electric Company (Aposentado) W. A. Milek, Jr. Consultor J. D. Ross U.S. Army of Corps of Engineers W. A. Thornton Cives Corporation J. Desjardins Bombardier Transportation Subcomitê D1Q Grupo de Tarefas em Qualificação J. H. Kiefer, Presidente ConocoPhillips Company E. L. Bickford,Vice-Presidente Acute Technological Services B. Anderson Kawasaki Motors M. Bernasek C-spec R. B. Corbit Exelon Nuclear Corporation R. A. Dennis Consultor M. A. Grieco Massachusetts Department of Transportation M. J. Harker Idaho National Laboratory J. J. Kenney Shell International E & P V. Kuruvilla Genesis Quality Systems K. Landwehr Schuff Steel Company R. P. Marslender Kiewit Offshore Services, LTD J. Mayne Valmont Industries J. I. Miller Helix Energy Solutions J. C. Nordby Entergy D. D. Rager Rager Consulting, Incorporated A. W. Sindel Alstom Power, Incorporated D. Stickel Caterpillar, Incorporated M. M. Tayarani Massachusetts Department of Transportation J. L. Uebele Waukesha County Technical College Conselheiros do Subcomitê D1Q Grupo de Tarefas em Qualificação
  • 13.
    AWS D1.1/D1.1M:2010 xi D. R.Lawrence II Butler Manufacturing Company (Aposentado) G. S. Martin GE Energy D. C. Phillips Hobart Brothers Company J. W. Post J. W. Post and Associates, Incorporated K. K. Verma Federal Highway Administration D. G. Yantz Canadian Welding Bureau Subcomitê D1Q Grupo de Tarefas em Fabricação V. Kuruvilla, Presidente Genesis Quality Systems H. E. Gilmer,Vice-Presidente Texas Department of Transportation B. Anderson Kawasaki Motors E. L. Bickford Acute Technological Services J. W. Cagle C P Buckner Steel Erection, Incorporated H. H. Campbell III Pazazu Engineering L. E. Collins Team Industries, Incorporated R. A. Dennis Consultor K. R. Fogleman Valmont Industries M. E. Gase Soil and Materials Engineers, Incorporated M. A. Grieco Massachusetts Department of Transportation C. R. Hess High Steel Structures, Incorporated G. J. Hill G. J. Hill & Associates C. W. Holmes Modjeski & Masters, Incorporated Subcomitê D1Q Grupo de Tarefas em Fabricação (Continuação) J. H. Kiefer ConocoPhillips Company K. Landwehr Schuff Steel Company E. S. LaPann Consultor C. A. Mankenberg Shell International E & P R. P. Marslender Kiewit Offshore Services, LTD G. S. Martin GE Energy D. L. McQuaid D. L. McQuaid & Associates, Incorporated R. D. Medlock High Steel Structures, Incorporated J. E. Mellinger Pennoni Associates, Incorporated W. A. Milek Consultor J. I. Miller Helix Energy Solutions T. J. Schlafly American Institute of Steel Construction A. W. Sindel Alstom Power, Incorporated J. Sokolewicz Trinity Rail K. K. Verma Federal Highway Administration Conselheiros do Subcomitê D1Q Grupo de Tarefas em Fabricação W. G. Alexander WGAPE F. R. Beckmann Consultor E. L. Bickford Acute Technologies Services G. L. Fox Consultor J. E. Myers Consultor J. W. Post J. W. Post and Associates, Incorporated R. H. R. Tide Wiss, Janney, Elstner Associates
  • 14.
    AWS D1.1/D1.1M:2010 xii Subcomitê D1QGrupo de Tarefasem Inspeção D. R. Scott, Presidente PSI (Aposentado) G. S. Martin,Vice-Presidente GE Energy U. W. Aschemeier H. C. Nutting/A Terracon Company H. H. Campbell III Pazazu Engineering R. V. Clarke Team Industries, Incorporated L. E. Collins Team Industries, Incorporated D. A. Dunn PSI K. R. Fogleman Valmont Industries M. E. Gase Soil and Materials Engineers, Incorporated C. W. Hayes The Lincoln Electric Company R. K. Holbert FMC Technologies Incorporated T. Huerter PSI P. G. Kinney Technip USA, Incorporated S. W. Kopp High Steel Structures, Incorporated N. S. Lindell Inspectech Consulting and Testing C. A. Mankenberg Shell International E & P P. W. Marshal MHP Systems Engineering D. L. McQuaid D. L. McQuaid & Associates, Incorporated J. E. Mellinger Pennoni Associates, Incorporated J. Merrill MACTEC, Incorporated M. Moles Olympus NDT J. B. Pearson, Jr. LTK Engineering Services R. W. Stieve Greenman-Pederson, Incorporated P. J. Sullivan Massachusetts Department of Transportation (Aposentado) K. K. Verma Federal Highway Administration D. G. Yantz Canadian Welding Bureau Conselheiros do Subcomitê D1Q Grupo de Tarefas emVerificação W. G. Alexander WGAPE E. M. Beck MACTEC Engineering & Consulting F. R. Beckmann Consultor G. J. Hill G. J. Hill & Associates M. L. Hoitomt Consultor J. H. Kiefer ConocoPhillips Company D. M. Marudas Consultor W. A. Milek, Jr. Consultor W. A. Svekric Welding Consultants, Incorporated Subcomitê D1Q Grupo de Tarefasem Soldagem de Pinos D. R. Luciani, Presidente Canadian Welding Bureau U. W. Aschemeier,Vice-Presidente H. C. Nutting/A Terracon Company H. A. Chambers Consultor D. A. Dunn PSI J. Guili Tru-Weld Equipment Company B. C. Hobson Image Industries
  • 15.
    AWS D1.1/D1.1M:2010 xiii J. E.Koski Stud Welding Products, Incorporated S. P. Moran PDM Bridge LLC M. M. Tayarani Massachusetts Department of Transportation J. L. Uebele Waukesha County Technical College P. Workman Tru-Weld Equipment Company Conselheirosdo Subcomitê D1Q Grupo de Tarefas em Soldagem de Pinos C. B. Champney Nelson Stud Welding C. C. Pease Consultor Subcomitê D1F em Reforço e Reparo N. J. Altebrando, Presidente STV, Incorporated S. W. Kopp, Vice-Presidente High Steel Structures, Incorporated S. Morales, Secretary American Welding Society C. W. Holmes Modjeski & Masters, Incorporated P. Rimmer New York State Department of Transportation R. W. Stieve Greenman-Pederson, Incorporated M. M. Tayarani Massachusetts Department of Transportation Conselheiros do Subcomitê D1F em Reforço e Reparo E. M. Beck MACTEC, Incorporated C. R. Hess High Steel Structures G. J. Hill G. J. Hill & Associates M. J. Mayes Mayes Testing Engineers, Incorporated J. W. Post J W Post & Associates, Incorporated J. D. Ross U.S. Army Corps of Engineers R. E. Shaw, Jr. Steel Structures Technology Center, Incorporated W. A. Thornton Cives Corporation R. H. R. Tide Wiss, Janney, Elstner Associates D1M Standing Grupo de Tarefasem Novos Materiais D. C. Phillips, Presidente Hobart Brothers Company T. J. Schlafly, Vice-Presidente American Institute of Steel Construction W. P. Capers Walt Disney World Company B. Cvijanovic ArcelorMittal International America C. W. Hayes The Lincoln Electric Company R. D. Medlock High Steel Structures, Incorporated D. Rees-Evans Steel Dynamics Conselheiros to the D1M Standing Grupo de Tarefasem Novos Materiais B. M. Butler Walt Disney World Company M. L. Hoitomt Consultor J. B. Pearson, Jr. LTK Engineering Services J. W. Post J W Post & Associates, Incorporated D. D. Rager Rager Consulting, Incorporated
  • 16.
    AWS D1.1/D1.1M:2010 xiv A. W.Sindel Alstom Power Esta página está em branco intencionalmente.
  • 17.
    AWS D1.1/D1.1M:2010 xv Prefácio Esse prefácionão é parte do Código de Soldagem Estrutural – Aço, D1.1/D1.1M:2010 da AWS, mas está incluso apenas para propósito de informação. A primeira edição do Code for Fusion Welding and Gás Cutting in Building Constructionfoi publicada pela Sociedade Americana de Soldagem em 1928 e chamada Código 1 Parte A. Ela foi revisada e relançada em 1930 e 1937 sob o mesmo título. Foi revisada novamente em 1941 e recebeu a designação D1.0. D1.0 foirevisado novamente em 1946, 1963, 1966, e1969. A edição de1963 publicou uma versãocom emendas em 1965, e a edição de 1966 publicou uma versãocom emendas em 1967. O código foi combinado com D2.0, Specifications for Welding Highway and Railway Bridges, em 1972, dada a designação D1.1, e renomeado AWS Structural Welding Code. D1.1 foirevisado novamente em 1975, 1979, 1980, 1981, 1982, 1983, 1984, 1985, 1986, 1988, 1990, 1992, 1994, 1996, 1998, 2000, 2002, 2004, 2006, e 2008. De 1972 a 1988, o código D1.1 abordou a soldagem tanto de prédios como de pontes. Em 1988, AAWS publicou sua primeira edição do AASHTO/AWS D1.5 Bridge Welding Code; coincidentemente com isso, o código D1.1 alterou referências de pontes e prédios para estruturas estaticamente carregadas e dinamicamente carregadas, respectivamente, para tornar o documento aplicável a uma faixa mais larga de aplicações estruturais. Essa edição de 2010 é a 22ª edição de D1.1. Texto sublinhado nas subcláusulas, tabelas, ou figuras indica uma alteração editorial ou técnica com relação à edição de 2008. Uma linhavertical na margem indica uma revisão com relação à edição de 2008. A seguir está um resumo das revisões técnicas mais significativas contidas no D1.1/D1.1M:2010: Cláusula 1.7— Revisado para esclarecimento. Cláusula 2.3.3— Revisado para esclarecimento em limitações ESWe EGW. Cláusula 3.3 Tabela— Revisões para esclarecer diferenças entre resistências de metal de adição de adaptação e sub- adaptação. Cláusula 3.6— Revisado para esclarecer variáveis essenciais pré-qualificadas. Cláusula 3.7.3— Referência a “ASTM A 588”substituída por “exposição às intempéries.” Cláusula 3.13.2— Nova seção acrescentada para esclarecer tela protetora pré-qualificada aceitável parasoldas em chanfro CJP. Tabela 3.1— Atualizada de acordo com as últimas especificações ASTM, ABS, e API. Adicionada amaterial ASTM A 709 HPS 50W para Grupo II. Tabela 3.2— Adicionada a ASTM A 709 Grau HPS 50W para Grupo B. Tabela 3.3— Excluída nota restringindo seu uso a apenas ASTM A 588 e A 709. Tabela 3.8— Novatabelaadicionada para esclarecer e listar as variáveis essenciais para WPSs pré-qualificados. Figuras 3.3 e 3.4 Nota (c)— Revisadas para adaptar-se a comando verbal apropriado em 2.18.2. Cláusula 4.36.3— Revisada para esclarecer quando novos CVN PQRs e WPSs são necessários. Tabela 4.9— Adicionado ASTM A 1043 Graus 36 e 50. Tabela 4.10— Notas (1) e (2) foram excluídas. Tabela 4.12— Notas (3) e (4) foram excluídas. Cláusula 5.2.2.2— Revisada para incluir requisitosde barra de prateleira. Cláusula 5.10.2— Revisada para esclarecer os requisitos para reforço de comprimento completo em aplicações estaticamente carregadas. Cláusula 5.15.4.3— Requisitos de rugosidade alterados para adequar-se aos critérios em AWS C4.1. Cláusula 5.17— Provisões extensivamente revisadas para ajustes de vigase orifícios de acesso. Acrescentada seção para formas galvanizadas. Cláusula 5.24— Seção extensivamente revisada para tratar de barras de prateleira e perfis de solda modificados aceitáveis.
  • 18.
    AWS D1.1/D1.1M:2010 xvi Tabela 5.9—Nova tabela adicionada para esclarecer perfis de solda aplicáveis. Tabela 5.10— Nova tabela acrescentada para determinar convexidade permissível baseada no programa de espessura de perfil de solda. Figura 5.2— Observações e esboço modificado para esclarecer a geometria de orifícios de acesso da braçadeira à flange. Figura 5.4— Extensivamente revisada para ilustrar perfis de solda aceitáveis e inaceitáveis para soldas em chanfro em juntas de topo, juntas de ângulo, juntas em T, juntas sobrepostas, assim como para tratar de soldas em barras de prateleira. Cláusula 6.17.7— Modificada para tratar de soldas em canos e reforço de aço. Cláusula 6.22.7.7— Revisada para cobrir outros blocos tipo IIW. Cláusula 6.23.1— Revisada para permitir o uso de quaisquer blocos UT tipo IIW de acordo com ASTM E 164. Cláusula 6.29.2.3— Revisada para tratar do número de indicações para blocos UT tipo IIW. Tabela 6.1(2)— Comando verbal apropriado revisado para esclarecimento sobre fusão aceitável. Tabela 6.6.— Notas (1) e (2) foramexcluídas databelae incorporadas à Cláusula 6.17.7. Figura 6.19— Modificada para tratar de blocos tipo IIW típicos. Cláusula 6.26.6.4— Cálculo para Fator de Atenuação corrigido em unidades SI. Cláusula 7.2.5— Revisada para especificar defeitos inaceitáveis em acabamentos de pino. Cláusula 7.2.5.2— Nova seção acrescentada para esclarecer trincas aceitáveis e inaceitáveis em pinos com cabeça. Tabela 7.1— Observação b modificada para tratar de projeto de ancoragem de concreto. Figura 7.1— Diâmetros de haste para pinos com cabeça revisados para serem menos restritivos. Também foram acrescentados pinos 3/8 in [10 mm]. Tabela I.2— Faixa de espessura revisada para incluir 3/8 in [10 mm] e valores métricos corrigidos. Anexo K— Acrescentados novos termos para “barra de prateleira” e modificado o termo para “NDT” para relacionar-se apenas ao contexto do código D1. O termo “soldagem de máquina” foi excluído e substituído pelo termo padrão “soldagem mecanizada” no anexo e em todo o código. As definições para “tubular” e “cano” também foram modificadas. Anexo N— Amostras de formulário revisadas para aplicação de soldagem de pinos N-9. O formulário N-3 foi corrigido. Cláusula C-3.7.3— Modificada para tratar de aço exposto às intempéries em geral, ao invés de restringir apenas a ASTM A 588. C-Tabela 3.8— Novo comentário acrescentado para explicar a Tabela 3.8 em variáveis essenciais pré-qualificadas. Cláusula C-5.4.1— Nova seção de comentários acrescentada com relação aos processos ESW e EGW. Cláusula C-5.10.2— Comentário revisado para tratar de descontinuidades no reforço. Cláusula C- 5.16— Comentário acrescentado com relação aos raios mínimos para cantos reentrantes. Cláusula C-5.17— Conteúdo do Comentário excluído e movido para a Cláusula C-5.16. Cláusula C-6.22.7.2— Revisada para explicar parâmetros das Tabelas 6.2 e 6.3. Cláusula C-6.23— Modificada para esclarecer a permissão do código de blocos tipo IIW. Cláusula 6.26.6— Comentário acrescentado para explicar técnicas de escaneamento requeridas pelas Tabelas 6.2 e 6.3. Cláusula C-7.2.5— Novo cálculo acrescentado para determinar o comprimento da trinca ou fenda para pinos com cabeça. Figura C-7.1— Nova figura acrescentada ilustrando o cálculo do comprimentoda trinca.
  • 19.
    AWS D1.1/D1.1M:2010 xvii AWS B4.0Standard Methods for Mechanical Testing of Welds, fornece detalhes adicionais da preparação de amostra de teste e detalhes da construção da fixação do teste. Comentário. O Comentário não é obrigatório e tem apenas a intenção de fornecer informações esclarecedoras sobre a lógica das provisões. Anexos Normativos. Estes anexos referem-se a assuntos específicos no código e seus requisitos são requisitos obrigatórios que suplementam as provisões do código. Anexos Informativos. Estes anexos não são requisitos do código, mas são fornecidos para esclarecer provisões do código ao mostrar exemplos, fornecendo informações ou sugerindo boas práticas alternativas. Índice. Como em códigos anteriores, as referências às entradas no Índice são por número de subcláusula e não por número de página. Isso deve possibilitar ao usuário do Índice localizar um item particular de interesse em tempo mínimo. Errata. É Política do Comitê de Soldagem Estrutural que toda errata deveria ser disponibilizada para usuários do código. Portanto, qualquer errata significativa será publicada na Society News Section of the Welding Journale postada noweb site da AWS em: http://www.aws.org/technical/d1/. Sugestões. Seus comentários para a melhoria do Código de Soldagem Estrutural – Aço, D1.1/D1.1M:2010, da AWS, são bem-vindos. Submeta comentários ao Diretor Executivo, Divisão de Serviços Técnicos, Sociedade Americana de Soldagem, 550 N. W. LeJeune Road, Miami, FL 33126, EUA; telefone 001 (305) 443-9353; fax 001 (305) 443-5951; e-mail info@aws.org; ou via o web site AWS da <http://www.aws.org>.
  • 20.
    AWS D1.1/D1.1M:2010 xviii Esta páginaestá em branco intencionalmente.
  • 21.
    AWS D1.1/D1.1M:2010 xix Índice Resumo ....................................................................................................................................................................ii Dedicatória .....................................................................................................................................................................v Prefácio ...................................................................................................................................................................xv Lista de Tabelas................................................................................................................................................................xxv Lista de Figuras............................................................................................................................................................ xxviii 1. Código de Soldagem Estrutural—Aço ........................................................................................................................1 1.1 Âmbito.........................................................................................................................................................................1 1.2 Limitações...................................................................................................................................................................1 1.3 Definições ...................................................................................................................................................................3 1.4 Responsabilidades .......................................................................................................................................................3 1.5 Aprovação ...................................................................................................................................................................3 1.6 Símbolos de Soldagem ................................................................................................................................................3 1.7 Precauções de Segurança.............................................................................................................................................3 1.8 Unidades Padrão de Medida........................................................................................................................................3 1.9 Documentos de Referência..........................................................................................................................................3 2. Projeto de Conexões Soldadas........................................................................................................................................5 2.1 Âmbito........................................................................................................................................................................5 Parte A—Requisitos Comuns para Projeto de Conexões Soldadas (Membros Tubulares e Não-Tubulares).....................5 2.2 Geral...........................................................................................................................................................................5 2.3 Planos e Especificações de Contrato ..........................................................................................................................5 2.4 Áreas Efetivas ............................................................................................................................................................6 Parte B— Requisitos Específicos para Projeto de Conexões Não-Tubulares (Carregadas Estaticamente ou Ciclicamente)....................................................................................................................... 8 2.5 Geral...........................................................................................................................................................................8 2.6 Tensões .....................................................................................................................................................................8 2.7 Configuração e Detalhes de Junta...............................................................................................................................9 2.8 Configuração e Detalhes de Junta — Soldas em Chanfro .......................................................................................10 2.9 Detalhes e Configuração de Junta — Juntas de Filete Soldadas...............................................................................10 2.10 Detalhes e Configuração de Juntas – Soldas de Tampão..........................................................................................11 2.11 Placas de Enchimento...............................................................................................................................................11 2.12 Membros Construídos ..............................................................................................................................................12 Parte C—Requisitos Específicos para Projeto de Conexões Não-Tubulares (Carregadas Ciclicamente) ..........................12 2.13 Geral ...................................................................................................................................................................12 2.14 Limitações................................................................................................................................................................12 2.15 Cálculo de Tensões...................................................................................................................................................12
  • 22.
    AWS D1.1/D1.1M:2010 xx 2.16 TensõesPermissíveis e Faixas de Tensão.................................................................................................................13 2.17 Detalhamento, Fabricação e Ereção .........................................................................................................................14 2.18 Juntas e Soldas Proibidas..........................................................................................................................................15 2.19 Inspeção ...................................................................................................................................................................15 Parte D—Requisitos Específicos para Projeto de Conexões Tubulares (Carregadas Estaticamente ou Ciclicamente)......................................................................................................................15 2.20 Geral.........................................................................................................................................................................15 2.21 Tensões Permissíveis................................................................................................................................................15 2.22 Identificação.............................................................................................................................................................16 2.23 Símbolos...................................................................................................................................................................16 2.24 Projeto de Solda .......................................................................................................................................................16 2.25 Limitações de Resistência de Conexões Soldadas....................................................................................................17 2.26 Transição de Espessura.............................................................................................................................................22 2.27 Limitações de Material.............................................................................................................................................22 3. Pré-qualificação de WPSs.............................................................................................................................................59 3.1 Escopo ......................................................................................................................................................................59 3.2 Processos de Soldagem.............................................................................................................................................59 3.3 Combinações de Metal Base / Metal de Adição .......................................................................................................59 3.4 Aprovação do engenheiro para anexos auxiliares.....................................................................................................60 3.5 Requisitos de Temperaturas Mínimas de Pré-aquecimento e Interpasse ..................................................................60 3.6 Limitação de Variáveis de WPS...............................................................................................................................60 3.7 Requisitos Gerais de WPS........................................................................................................................................60 3.8 Requisitos Comuns para SAW de Eletrodos Paralelos e Eletrodos Múltiplos..........................................................61 3.9 Requisitos para Solda de Filete ................................................................................................................................61 3.10 Requisitos para Soldas de Tampão (Soldas Plug e Slot)...........................................................................................61 3.11 Requisitos Comuns de Soldas em Chanfro PJP e CJP..............................................................................................62 3.12 Requisitos de PJP .....................................................................................................................................................62 3.13 Requisitos de Solda em Chanfro com CJP ...............................................................................................................62 3.14 Tratamento Térmico Pós-Soldagem .........................................................................................................................63 4. Qualificação ...........................................................................................................................................................126 4.1 Escopo .....................................................................................................................................................................126 Parte A—Requisitos Gerais ..............................................................................................................................................126 4.2 Geral .................................................................................................................................................................126 4.3 Requisitos Comuns para Qualificação de Desempenho WPS e de Equipe de Soldagem ........................................127 Parte B—Especificação deProcedimento de Soldagem(WPS)..........................................................................................127 4.4 Posições de Soldagem de Produção Qualificadas...................................................................................................127 4.5 Tipo de Testes de Qualificação................................................................................................................................127 4.6 Tipos de Solda para Qualificação WPS ...................................................................................................................127 4.7 Preparação de WPS .................................................................................................................................................127 4.8 Variáveis Essenciais................................................................................................................................................128 4.9 Métodos de Teste e Critérios de Aceitação para Qualificação WPS........................................................................128 4.10 Soldas em Chanfro CJP para Conexões Não Tubulares ..........................................................................................130 4.11 Soldas em Chanfro PJP para Conexões Não Tubulares..........................................................................................130 4.12 Soldas de Filete para Conexões Tubulares e Não Tubulares ...................................................................................130 4.13 Soldas em Chanfro CJP para Conexões Tubulares...................................................................................................131
  • 23.
    AWS D1.1/D1.1M:2010 xxi 4.14 Conexõesem T-, Y-, ou K- e Juntas de Topo Tubulares PJP ...................................................................................132 4.15 Soldas de Tampão para Conexões Tubulares e Não Tubulares ...............................................................................132 4.16 Processos de Soldagem que Requerem Qualificação...............................................................................................132 4.17 Requisito WPS (GTA W) ..........................................................................................................................................132 4.18 Requisitos WPS (ESW/EGW) ................................................................................................................................132 Parte C—Qualificação de Desempenho............................................................................................................................133 4.19 Geral........................................................................................................................................................................133 4.20 Tipos de Testes de Qualificação Requeridos ...........................................................................................................133 4.21 Tipos de Solda para Qualificação de Desempenho de Soldador e Operador de Soldagem.......................................134 4.22 Preparação de Formulários de Qualificação de Desempenho ..................................................................................134 4.23 Variáveis Essenciais................................................................................................................................................134 4.24 Soldas em Chanfro CJP para Conexões Não Tubulares..........................................................................................134 4.25 Soldas em Chanfro PJP para Conexões Não Tubulares. ..........................................................................................134 4.26 Soldas de Filete para Conexões Não Tubulares.......................................................................................................134 4.27 Soldas em Chanfro CJP para Conexões Tubulares..................................................................................................134 4.28 Soldas em Chanfro PJP para Conexões Tubulares. .................................................................................................135 4.29 Soldas de Filete para Conexões Tubulares. .............................................................................................................135 4.30 Soldas de Tampão (Plug e Slot) para Conexões Tubulares e Não Tubulares. .........................................................135 4.31 Métodos de Teste e Critérios de Aceitação para Qualificação de Soldador e Operador de Soldagem ....................135 4.32 Método de Teste e Critérios de Aceitação para Qualificação de Soldador Ponteador .............................................136 4.33 Reteste .....................................................................................................................................................................136 Parte D—Requisitos de Teste CVN..................................................................................................................................137 4.34 Geral........................................................................................................................................................................137 4.35 Locais de Teste ........................................................................................................................................................137 4.36 Testes CVN ............................................................................................................................................................137 4.37 Requisitos de Teste.................................................................................................................................................138 4.38 Reteste.....................................................................................................................................................................138 4.39 Relatório..................................................................................................................................................................138 5. Fabricação .................................................................................................................................................................194 5.1 Escopo.....................................................................................................................................................................194 5.2 Metal Base...............................................................................................................................................................194 5.3 Consumíveis de Soldagem e Requisitos de Eletrodo...............................................................................................194 5.4 Processos ESW e EGW..........................................................................................................................................196 5.5 Variáveis WPS. .......................................................................................................................................................196 5.6 Temperaturas de Pré-aquecimento e Interpasse.......................................................................................................197 5.7 Controle de Aporte de Calor para Aços Resfriados e Temperados..........................................................................197 5.8 Tratamento Térmico de Alívio de Tensão. ..............................................................................................................197 5.9 Reforço, Gás de Reforço ou Encaixes. ....................................................................................................................198 5.10 Reforço....................................................................................................................................................................198 5.11 Equipamentos de Corte e Soldagem........................................................................................................................198 5.12 Ambiente de Soldagem............................................................................................................................................198 5.13 Conformidade com o Projeto...................................................................................................................................199 5.14 Tamanhos Mínimos de Solda de Filete...................................................................................................................199 5.15 Preparação de Metal Base........................................................................................................................................199 5.16 Cantos Reentrantes .................................................................................................................................................200 5.17 Orifícios de Acesso de Solda, Ajustes de Viga, e Material de Conexão..................................................................201 5.18 Soldas Provisórias e Soldas para Auxiliar a Construção .........................................................................................201 5.19 Abaulamento em Membros Construídos.................................................................................................................202
  • 24.
    AWS D1.1/D1.1M:2010 xxii 5.20 Emendasem Estruturas Ciclicamente Carregadas..................................................................................................202 5.21 Controle de Distorção e Retração............................................................................................................................202 5.22 Tolerância de Dimensões de Juntas .........................................................................................................................202 5.23 Tolerância Dimensional de Membros Estruturais Solda-dos ..................................................................................204 5.24 Perfis de Solda.........................................................................................................................................................206 5.25 Técnica para Soldas de Tampão (Plug e Slot) .........................................................................................................206 5.26 Reparos....................................................................................................................................................................206 5.27 Martelamento ..........................................................................................................................................................207 5.28 Calafetagem.............................................................................................................................................................208 5.29 Aberturas de Arco....................................................................................................................................................208 5.30 Limpeza de Solda....................................................................................................................................................208 5.31 Guias de Solda (Ver 5.2.2) ......................................................................................................................................208 6. Inspeção .................................................................................................................................................................220 Parte A—Requisitos Gerais ..............................................................................................................................................220 6.1 Âmbito 220 6.2 Inspeção de Materiais e Equipamento ....................................................................................................................221 6.3 Inspeção de WPSs ..................................................................................................................................................221 6.4 Inspeção de Qualificações de Soldador, Operador de Soldagem e Soldador Ponteador.........................................221 6.5 Inspeção de Trabalho e Registros...........................................................................................................................221 Parte B—Responsabilidades do Empreiteiro ....................................................................................................................222 6.6 Obrigações do Empreiteiro.....................................................................................................................................222 Parte C—Critérios de Aceitação .......................................................................................................................................222 6.7 Âmbito.....................................................................................................................................................................222 6.8 Aprovação do Engenheiro para Critérios de Aceitação Alternativos.......................................................................222 6.9 Inspeção Visual .......................................................................................................................................................222 6.10 PT e MT...................................................................................................................................................................222 6.11 NDT ........................................................................................................................................................................222 6.12 RT............................................................................................................................................................................223 6.13 UT ...........................................................................................................................................................................224 Parte D—Procedimentos NDT..........................................................................................................................................225 6.14 Procedimentos........................................................................................................................................................225 6.15 Extensão do Teste...................................................................................................................................................226 Parte E—Teste Radiográfico (RT)....................................................................................................................................226 6.16 RT de Soldas em Chanfro em Juntas de Topo........................................................................................................226 6.17 RT Procedimentos..................................................................................................................................................226 6.18 Requisitos RT Suplementares para Conexões Tubulares........................................................................................228 6.19 Exame, Relatório e Disposição de Radiografias.....................................................................................................228 Parte F—Teste de Ultrassonografia (UT) de Soldas em Chanfro.....................................................................................229 6.20 Geral .......................................................................................................................................................................229 6.21 Requisitos de Qualificação. ....................................................................................................................................229 6.22 Equipamento UT ....................................................................................................................................................229 6.23 Padrões de Referência ............................................................................................................................................230 6.24 Qualificação de Equipamento.................................................................................................................................230 6.25 Calibragem para Teste............................................................................................................................................230 6.26 Procedimentos de Teste..........................................................................................................................................231
  • 25.
    AWS D1.1/D1.1M:2010 xxiii 6.27 UTde Conexões Tubulares em T-, Y- e K-...........................................................................................................232 6.28 Preparação e Disposição de Relatórios...................................................................................................................234 6.29 Calibragem da unidade de UT com Blocos Tipo IIW ou Outros Blocos de Referência Aprovados (Anexo H)....234 6.30 Procedimentos de Qualificação de Equipamento....................................................................................................235 6.31 Procedimentos de Avaliação de Tamanho de Descontinuidade..............................................................................237 6.32 Padrões de Escaneamento (Ver Figura 6.21)..........................................................................................................237 6.33 Exemplos de Certificação de Precisão dB ..............................................................................................................237 Parte G—Outros Métodos de Exame ................................................................................................................................237 6.34 Requisitos Gerais....................................................................................................................................................237 6.35 Sistemas de Imagem por Radiação.........................................................................................................................237 6.36 Sistemas de Ultrassonografia Avançados...............................................................................................................238 6.37 Requisitos Adicionais..............................................................................................................................................238 7. Soldagem de Pinos.......................................................................................................................................................282 7.1 Escopo ....................................................................................................................................................................282 7.2 Requisitos gerais.....................................................................................................................................................282 7.3 Requisitos mecânicos .............................................................................................................................................283 7.4. Mão de obra/ fabricação .........................................................................................................................................283 7.5 Técnica ...................................................................................................................................................................283 7.6 Requisitos de qualificação de aplicação de pinos...................................................................................................284 7.7. Controle da produção .............................................................................................................................................285 7.8 Requisitos de inspeção de controle e fabricação.....................................................................................................285 7.9 Requisitos do fabricante quanto à qualificação da base do pino.............................................................................286 8. Fortalecendo e Reparando Estruturas Existentes ....................................................................................................292 8.1 Geral .......................................................................................................................................................................292 8.2 Metal Base..............................................................................................................................................................292 8.3 Projeto para Fortalecimento e Reparação ...............................................................................................................292 8.4 Aprimoramento do Tempo de Fadiga.....................................................................................................................293 8.5 Mão-de-Obra e Técnica..........................................................................................................................................293 8.6 Qualidade ...............................................................................................................................................................293 Anexos...............................................................................................................................................................................294 Anexo A (Normativo) —Garganta Efetiva .......................................................................................................................296 Anexo B (Normativo) —Gargantas Efetivas de Soldas de Filete em Juntas Oblíquas em T ............................................298 Anexo D (Normativo)—Aplainamento de Braçadeiras de Trave—Estruturas Estaticamente Carregadas........................302 Anexo E (Normativo)—Aplainamento de Braçadeiras de Trave—Estruturas Ciclicamente Carregadas..........................306 Anexo F (Normativo)—Gráficos de Conteúdo de Temperatura-Umidade........................................................................312 Anexo G (Normativo)—Requisitos de Qualificação de Fabricante de Base de Pinos ......................................................316 Anexo H (Normativo)—Qualificação e Calibragem de Unidades UT com Outros Blocos de Referência Aprovados .....318 Anexo I (Normativo)—Orientação sobre Métodos Alternativos de Determinar Pré-aquecimento ...................................322 Anexo J (Normativo)—Símbolos para Projeto de Solda de Conexão Tubular .................................................................333 Anexo K (Informativo)—Termos e Definições.................................................................................................................335 Anexo L (Informativo)—Guia para Escritores de Especificação ......................................................................................343 Anexo M (Informativo)—Formulários de Inspeção e Qualificação de Equipamento UT.................................................345 Anexo N (Informativo)—Formulários de Amostra de Soldagem .....................................................................................355 Anexo O (Informativo) —Diretrizes para a Preparação de Questões Técnicas para o Comitê de Soldagem Estrutural ..367 Anexo P (Informativo)—Ângulo Diedro Local ................................................................................................................369 Anexo Q (Informativo)—Conteúdos de WPS Pré-qualificado .........................................................................................375 Anexo R (Informativo)—Práticas Seguras........................................................................................................................377
  • 26.
    AWS D1.1/D1.1M:2010 xxiv Anexo S(Informativo)—Exame UT de Soldas por Teste de Ultrassografia - Técnicas Alternativas ...............................381 Anexo T (Informativo)—Parâmetro Oval Alfa.................................................................................................................397 Anexo U (Informativo)—Lista de Documentos de Referência .........................................................................................399 Anexo V (Informativo)—Propriedades de Resistência de Metal de Adição .....................................................................401 Prefácio.............................................................................................................................................................................415 Comentário sobre Código de Soldagem Estrutural-Aço C-1. Requisitos Gerais..............................................................417 Índice remissivo................................................................................................................................................................529 Lista de Documentos da AWS sobre Soldagem Estrutural ................................................. Error! Bookmark not defined.
  • 27.
    AWS D1.1/D1.1M:2010 xxv Lista deTabelas 2.1 Tamanho Efetivo da Solda em Chanfro Curvado com Preenchimento por Jateamento (ver 2.4.1.4) ....................24 2.2 Dimensão de Perda Z (Não-tubular) (ver 2.4.3.3) ..................................................................................................24 2.3 Tensões Permissíveis (ver 2.6.4 e 2.16.1)...............................................................................................................25 2.4 Coeficientes de Resistência Equivalente para Soldas de Filete Carregadas Obliquamente (ver 2.6.4.4)...............26 2.5 Parâmetros de Projeto de Tensão de Fadiga (ver 2.14.1)........................................ Error! Bookmark not defined. 2.6 Tensão Permissível em Soldas de Conexão Tubular (ver 2.21.3)........................... Error! Bookmark not defined. 2.7 Categorias de Tensão para Tipo e Local de Material para Seções Circulares (ver 2.21.6.2) ..................................27 2.8 Limitações de Categoria de Fadiga no Tamanho ou Espessura da Solda e Perfil de Solda (Conexões Tubulares) 29 2.9 Dimensões de Perda Z para Calcular Tamanhos de Solda Mínimos para Conexões Tubulares Pré-qualificadas T-, Y-,e K- PJP .......................................................................................................................................................29 2.10 Termos para Resistência de Conexões (Seções Circulares) (ver 2.25.1.1) .............................................................30 3.1 Metal Base Pré-qualificado — Combinações do Metal de Adição para Resistência Correspondente (ver 3.3)......64 3.2 Temperaturas Mínimas Pré-qualificadas de Pré-aquecimento e de Interpasse (ver 3.5).........................................68 3.3 Requisitos do Metal de Adição para Aplicações Expostas, Nuas de Aços Resistentes à Corrosão Atmosférica ....72 3.4 Tamanho de Solda Mínimo Pré-Qualificado de PJP (E) (ver 3.12.2.1) ..................................................................72 3.5 Aplicações do Detalhe de Junta para Conexões Tubulares Pré-qualificadas em T-, Y- e K- com CJP ..................72 3.6 Dimensões de Juntas e Ângulos de Chanfro Pré-qualificados para Soldas em Chanfro com CJP em Conexões Tubulares em T-, Y- e K- Feitas por meio de SMAW, GMAW-S e FCAW (ver 3.13.5).......................................73 3.7 Requisitos para WPS Pré-qualificadas (ver 3.7).....................................................................................................74 3.8 Variáveis de WPSs Pré-qualificadas.......................................................................................................................75 4.1 Qualificação WPS—Posições de Soldagem de Produção Qualificadas por Testes de Placa, Cano e Tubo de Caixa ..........................................................................................................................................139 4.2 Qualificação WPS—Soldas em Chanfro CJP: Número e Tipo de Espécimes de Teste e Faixa de Espessura e Diâmetro Qualificada (ver 4.5) (Dimensões em Polegadas).................................................................................140 4.3 Número e Tipo de Espécimes de Teste e Faixa de Espessura Qualificada - Qualificação WPS; Soldas em Chanfro PJP.........................................................................................................................................142 4.4 Número e Tipo de Espécimes de Teste e Faixa de Espessura Qualificada - Qualificação WPS; Soldas de Filete.....................................................................................................................................................142 4.5 Alterações em Variável Essencial de PQR que Requerem Requalificação WPS para SMAW, SAW, GMAW, FCAW, e GTAW (ver 4.8.1) ................................................................................................................................143 4.6 Alterações Suplementares de Variável Essencial de PQR para Aplicações de Teste CVN que Requerem Requalificação WPS para SMAW, SAW, GMAW, FCAW, e GTAW ................................................................146 Tabela Núm. de página
  • 28.
    AWS D1.1/D1.1M:2010 xxvi 4.7 Alteraçõesde Variável Essencial de PQR que Requerem Requalificação de WPS para ESW ou EGW .............147 4.8 Tabela 3.1, Tabela 4.9, e Aços Não Listados Qualificados por PQR....................................................................148 4.9 Base e Metais de Adição Aprovados pelo Código que Requerem Qualificação pela Cláusula 4 .........................149 4.10 Qualificação de Soldador e Operador de Soldagem—Posições de Soldagem de Produção Qualificadas por Testes de Placa, Cano e Tubo de Caixa ...........................................................................................................................151 4.11 Qualificação de Soldador e Operador de Soldagem—Número e Tipo de Espécimes e Faixa de Espessura e Diâmetro Qualificados (Dimensões em Polegadas) .............................................................................................152 4.12 Alteração em Variável Essencial de Desempenho de Equipe de Soldagem que Requer Requalificação..............156 4.13 Grupos de Classificação de Eletrodo (ver Tabela 4.12)........................................................................................156 4.14 Requisitos de Teste CVN (ver 4.36).....................................................................................................................157 4.15 Redução de Temperatura de Teste CVN (ver 4.36.5) Para espécimes de teste CVN de tamanho inferior em que a largura através do entalhe é menos que 80% da espessura do metal base.............................................................157 5.1 Exposição Atmosférica Permissível de Eletrodos de Baixo Hidrogênio (ver 5.3.2.2 e 5.3.2.3) .........................209 5.2 Tempo Mínimo de Retenção (ver 5.8.1)...............................................................................................................209 5.3 Tratamento Térmico Alternativo de Alívio de Tensão (ver 5.8.2)........................................................................209 5.4 Limites de Aceitabilidade e Reparo de Descontinuidades Laminares em Superfícies Cortadas Produzidas na Fábrica (ver 5.15.1) ..............................................................................................................................................209 5.5 Tolerâncias de Abertura de Raízes Tubulares (ver 5.22.4.2) ................................................................................210 5.6 Tolerância de Abaulamento para Trave Típica (ver 5.23.3) .................................................................................210 5.7 Tolerância de Abaulamento para Traves sem uma Mísula Concreta Projetada (ver 5.23.4).................................210 5.8 Tamanhos Mínimos de Solda de Filete.................................................................................................................210 5.9 Perfis de Solda......................................................................................................................................................211 5.10 Programas de Perfil de Solda ...............................................................................................................................211 6.1 Critérios de Aceitação de Inspeção Visual ...........................................................................................................240 6.2 Critérios de Aceitação -Rejeição UT ....................................................................................................................241 6.3 Critérios de Aceitação-Rejeição UT .................................................................................................................... 242 6.4 Requisitos IQI de Tipo de Orifício .......................................................................................................................243 6.5 Requisitos IQI de Arame ......................................................................................................................................243 6.6 Seleção e Colocação de IQI..................................................................................................................................244 6.7 Ângulo de Teste....................................................................................................................................................245 7.1 Requisitos de Propriedades Mecânicas para Pinos ...............................................................................................288 7.2 Tamanho Mínimo de Solda de Filete Para Pinos de Pequeno Diâmetro...............................................................288 B.1 Fatores Equivalentes de Tamanho de Perna de Solda de Filete para Juntas Oblíquas em T-................................299 D.1 Reforços Intermediários em Ambos os Lados de Braçadeira ...............................................................................303 D.2 Sem Reforços Intermediários................................................................................................................................303 D.3 Reforços Intermediários em Apenas Um Lado de Braçadeira..............................................................................304 E.1 Reforços Intermediários em Ambos os Lados de Braçadeira. Traves Interiores...................................................307 E.2 Reforços Intermediários em Apenas Um Lado de Braçadeira. Traves Frontais ...................................................308 E.3 Reforços Intermediários em Apenas Um Lado de Braçadeira. Traves Interiores .................................................309 E.4 Reforços Intermediários em Ambos os Lados de Braçadeira. Traves Frontais.....................................................310 E.5 Sem Reforços Intermediários. Traves Frontais ou Interiores................................................................................310 I.1 Grupamento de Índice de Suscetibilidade como Função de Nível de Hidrogênio “H” e Parâmetro de Composição Pcm ............................................................................................................................326 I.2 Temperaturas Mínimas de Pré-aquecimento e Interpasse para Três Níveis de Restrição (ver I6.2.4) ..................326
  • 29.
    AWS D1.1/D1.1M:2010 xxvii S.1 Critériode Rejeição-Aceitação (ver S12.1) ..........................................................................................................386 C-2.1 Estudo de Limites de Diâmetro/Espessura e Largura/Espessura Chata para Tubos (ver C-2.21.1) ......................438 C-2.2 Fatores de Projeto Sugeridos (ver C-2.25.2).........................................................................................................439 C-2.3 Valores de JD (ver C-2.25.2.5).............................................................................................................................439 C-2.4 Placas de Aço Estrutural (ver C-2.27.2) ...............................................................................................................440 C-2.5 Canos de Aço Estrutural e Moldes Tubulares (ver C-2.27.2) ...............................................................................442 C-2.6 Moldes de Aço Estrutural (ver C-2.27.2)..............................................................................................................442 C-2.7 Matriz de Classificação para Aplicações(ver C-2.27.2)........................................................................................444 C-2.8 Condições de Teste CVN (ver C-2.27.2.2)...........................................................................................................444 C-3.1 Faixas Típicas de Corrente para GMAW-S em Aço.............................................................................................463 C-4.1 Valores de Teste CVN (ver C-4.13.4.4)................................................................................................................473 C-4.2 Valores de Teste CVN HAZ (ver C-4.13.4.4) ......................................................................................................473 C-6.1 Critérios de Aceitação UT para Soldagem 2 in [50 mm], Usando uma Sonda de 70º (ver C-6.13.1)...................504 C-8.1 Guia de Adequação para Soldagem (ver C-8.2.2).................................................................................................519 C-8.2 Relação entre a Espessura da Placa e o Raio da Broca [ver C-8.4.1(2)] ...............................................................519
  • 30.
    1. REQUISITOS GERAISAWS D1.1/D1.1M:2010 xxviii Lista de Figuras 2.1 Tamanho Máximo de Solda de Filete Ao Longo das Arestas em Juntas Sobrepostas (ver 2.4.2.9)........................31 2.2 Transição de Juntas de Topo em Partes de Espessura Desigual (Não-tubulares Carregadas Estaticamente)..........32 2.3 Transição das Espessuras (Não-tubulares Carregadas Estaticamente) (ver 2.7.5 e 2.8.1)......................................33 2.4 Soldas de Filete Carregadas Transversalmente (ver 2.9.1.2) ..................................................................................33 2.5 Comprimento Mínimo de Soldas de Filete Longitudinais na Extremidade de Membros de Placa ou Barra Chata 34 2.6 Terminação de Soldas Próximo a Arestas Sujeitas a Tensão (ver 2.9.3.2) ............................................................34 2.7 Soldagem de Acabamentoem Conexões Flexíveis (ver 2.9.3.3).............................................................................35 2.8 Soldas de Filete em Lados Opostos de um Plano Comum (ver 2.9.3.5) .................................................................35 2.9 Placas de Enchimento Finas em Junta de Emenda (ver 2.11.1) ..............................................................................36 2.10 Placas de Enchimento Grossas em Junta de Emenda (ver 2.11.2) ..........................................................................36 2.11 Faixa de Tensão Permissível para Carga Aplicada Ciclicamente (Fadiga) em Conexões Não-tubulares (Traçado Gráfico da Tabela 2.5)............................................................................................................................................37 2.12 Transição da Largura (Não-tubular Carregada Ciclicamente) (ver 2.17.1.2).........................................................38 2.13 Tensão de Fadiga Permissível e Faixas de Deformação para Categorias de Tensão (ver Tabela 2.7), Estruturas Tubulares Redundantes para Serviço Atmosférico (ver 2.21.6.3)...........................................................................38 2.14 Partes de uma Conexão Tubular (ver 2.22).............................................................................................................39 2.15 Junta Sobreposta Soldada com Filete (Tubular) (ver 2.24.1.3)...............................................................................42 2.16 Raio de Alcance de Solda de Filete em Conexões Tubulares T-, Y-, e K- (ver 2.24.3)........................................42 2.17 Tensão de PuncionamentoPuncionamento(ver 2.25.1.1)........................................................................................43 2.18 Detalhe de Sobreposição de Junta (ver 2.25.1.6)....................................................................................................43 2.19 Limitações para Conexões de Caixaem T-, Y- e K (ver 2.25.2) .............................................................................44 2.20 Conexões Sobrepostas em K(ver 2.25.2.4).............................................................................................................44 2.21 Transição de Espessura de Juntas de Topo em Partes de Espessura Desigual (Tubulares) (ver 2.26) ....................45 3.1 Nó de soldagem em que a profundidade e a largura excedem a largura da face da solda (ver 3.7.2) .....................77 3.2 Juntas tubulares pré-qualificadas de soldagem de filete feitas por meio de SMAW, GMAW e FCAW (ver 3.9.2) ...............................................................................................................77 3.3 Detalhes de Junta de Solda em Chanfro pré-qualificado de PJP (ver 3.12) (Dimensões em polegadas (in))..........79 3.4 Detalhes de Junta de Solda em Chanfro pré-qualificado de CJP - (ver 3.13) (Dimensões em polegadas)..............95 5.1 Descontinuidades de Aresta em Material de Corte ...............................................................................................211 5.2 Geometria do Orifício de Acesso da Solda...........................................................................................................212 5.3 Tolerâncias de Mão-de-Obra na Montagem de Juntas Soldadas em Chanfro.......................................................213 5.4 Requisitos para Perfis de Solda ............................................................................................................................214 6.1 Critérios de Aceitação de Descontinuidade para Conexões Não Tubulares Estaticamente Carregadas e Conexões Tubulares Estaticamente ou Ciclicamente Carregadas (ver 6.12.1)......................................................................248 6.2 Critérios de Aceitação de Descontinuidade para Conexões Não Tubulares Ciclicamente Carregadas em Tensão (Limitações de Porosidade e Descontinuidades de Fusão) (ver 6.12.2.1).............................................................253 6.3 Critérios de Aceitação de Descontinuidade para Conexões Não Tubulares em Compressão (Limitações de Porosidade ou Descontinuidades do Tipo Fusão) (ver 6.12.2.2) ..................................................258 6.4 Indicações da Classe R (ver 6.13.3.1)...................................................................................................................263 Figura Núm. de página
  • 31.
    1. REQUISITOS GERAISAWS D1.1/D1.1M:2010 xxix 6.5 Indicações da Classe X (ver 6.13.3.2)...................................................................................................................265 6.6 IQI Tipo Orifício (ver 6.17.1)...............................................................................................................................266 6.7 IQI de Arame (ver 6.17.1) ....................................................................................................................................267 6.8 Identificação RT e Locais de Tipo-Orifício ou IQI de Arame em Juntas de Espessura Aproximadamene Igual a 10 in [250 mm] e Maiores em Comprimento (ver 6.17.7) ..........................................268 6.9 Identificação RT e Locais de Tipo-Orifício ou IQI de Arame em Juntas de Espessura Aproximadamene Igual ou menores que 10 in [250 mm] em Comprimento (ver 6.17.7)....................................269 6.10 Identificação RT e Locais de Tipo-Orifício ou IQI de Arame em Juntas de Transição de 10 in [250 mm] e Maiores em Comprimento...................................................................................................270 6.11 Identificação RT e Locais de Tipo-Orifício ou IQI de Arame em Juntas de Espessura menores que 10 in [250 mm] em Comprimento ...................................................................................................271 6.12 Blocos de Aresta RT (ver 6.17.13) .......................................................................................................................271 6.13 Exposição de Parede Única – Vista de Parede Única (ver 6.18.1.1).....................................................................272 6.14 Exposição de Parede Dupla – Vista de Parede Única (ver 6.18.1.2).....................................................................272 6.15 Exposição de Parede Dupla – Vista de Parede Dupla (Elíptica), Mínimo de Duas Exposições (ver 6.18.1.2) .....273 6.16 Exposição de Parede Dupla – Vista de Parede Dupla (Elíptica), Mínimo de Três Exposições (ver 6.18.1.3) ......273 6.17 Cristal Transdutor (ver 6.22.7.2) ..........................................................................................................................274 6.18 Procedimento de Qualificação da Unidade de Busca Usando Bloco de Referência IIW (ver 6.22.7.7)................274 6.19 Bloco Típico do Tipo IWW (ver 6.23.1) ..............................................................................................................275 6.20 Blocos de Qualificação (ver 6.23.3) .....................................................................................................................276 6.21 Visão de Plano de Padrões de Escaneamento UT (ver 6.32) ................................................................................278 6.22 Técnicas de Escaneamento (ver 6.27.5)................................................................................................................279 6.23 Posições do Transdutor (Típico) (ver 6.29) ..........................................................................................................280 7.1 Dimensões e Tolerâncias de Pinos com Cabeça do Tipo-Padrão (ver 7.2.1).......................................................289 7.2 Suporte de Tese de Tensão Típico (ver 7.3.2) ......................................................................................................289 7.3 Arranjo de Teste de Torque e Tabela de Torques de Teste (ver 7.6.6.2) ..............................................................290 7.4 Dispositivo de Teste de Flexão (ver 7.9.7.2) ........................................................................................................291 7.5 - Tipo de Dispositivo Sugerido para Teste de Qualificação de Pinos Pequenos (ver 7.9.7.2).................................291 F.1 Gráfico de Conteúdo de Temperatura-Umidade a ser Usado em Conjunção com Programa de Teste para Determinar Tempo Estendido de Exposição Atmosférica de Eletrodos SMAW de Baixo Hidrogênio................313 F.2 Aplicação de Gráfico de Conteúdo de Temperatura-Umidade na Determinação de Tempo de Exposição Atmosférica de Eletrodos SMAW de Baixo Hidrogênio (ver 5.3.2.3)..................................................................314 H.1 Outros Blocos Aprovados e Posição de Transdutor Típica (ver H2.3.1) ..............................................................320 I.1 Classificação de Zona de Aços (ver I5.1) .............................................................................................................328 I.2 Taxa de Resfriamento Crítica para 350 HV e 400 HV (ver I3.3)..........................................................................328 I.3 Gráficos para Determinar Taxas de Resfriamento para Soldas de Filete SAW de Passe Único (ver I6.1.3) ........329 I.4 Relação Entre Tamanho de Solda de Filete e Entrada de Energia (ver I6.1.5) ....................................................332 S.1 Refletor de Referência Padrão (ver S5) ................................................................................................................387 S.2 Bloco de Calibragem Recomendado (ver S5).......................................................................................................387 S.3 Refletor Típico Padrão (Localizado em Maquetes de Solda e Soldas de Produção) (ver S5)...............................388 S.4 Correção de Transferência (ver S6.1) ...................................................................................................................389 S.5 Profundidade de Onda de Compressão (Calibragem de Varredura Horizontal) (ver S6.2.1)................................389 S.6 Calibragem de Sensibilidade de Onda de Compressão (ver S6.2.2) .....................................................................390 S.7 Calibragem de Sensibilidade e Distância de Onda de Cisalhamento (ver S6.3.1) ...............................................390 S.10 Características de Descontinuidade Cilíndrica (ver S8.2.2)..................................................................................392 S.14 Marcação da Tela de Exibição (ver S11) 21f.......................................................................................................394 S.15 Relatório de UT (Procedimento Alternativo) (ver S13)........................................................................................395 T.1 – Definição de Termos para Alfa Computado .........................................................................................................398 C-2.1 Equilíbrio de Solda de Filete sobre o Ângulo do Eixo Neutro (ver C-2.6.2) .......................................................445 C-2.2 Planos de Cisalhamento para Soldas em Chanfro e de Filete (ver C-2.6.4).........................................................445 C-2.3 Carga Excêntrica (ver C-2.6.4.2 e C-2.6.4.3)........................................................................................................446 C-2.4 Relação de Deformação de Carga para Soldas (ver C-2.6.4.2 e C-2.6.4.3) ..........................................................446 C-2.5 Exemplo de um Grupo de Solda Obliquamente Carregado ..................................................................................447
  • 32.
    1. REQUISITOS GERAISAWS D1.1/D1.1M:2010 xxx C-2.6 Solução Gráfica da Capacidade de um Grupo de Solda Obliquamente Carregada ...............................................448 C-2.7 Juntas Sobrepostas Soldadas em Solda de Filete Única (ver C-2.9.1.1) ...............................................................449 C-2. Ilustrações de Tensões do Membro de Ramificação Correspondentes ao Modo de Carga (ver C-2.21.6.2).........449 C-2.9 Requisitos de Perfil de Solda Melhorada (ver C-2.21.6.6) ...................................................................................450 C-2.10 Concepção Simplificada de PuncionamentoPuncionamento (ver C-2.25.1.1)......................................................450 C-2.11 Confiabilidade dos Critérios de PuncionamentoPuncionamento Usando Alfa Computado (ver C-2.25.1.1) .......451 C-2.12 Transição entre Folga e Conexões Sobrepostas (ver C-2.25.2.1)..........................................................................452 C-2.13 Teorema do Limite Superior (ver C-2.21.6.2, C-2.25.2, e C-2.27)......................................................................452 C-2.14 Padrões de Linha de Limite (ver C-2.27 e C-2.25.2)............................................................................................453 C-3.1 Oscilógrafos e Esboços de Transferência de Metal de GMAW-S ........................................................................463 C-3.2 Exemplos de Trinca na Linha do Centro (ver C-3.7.2).........................................................................................464 C-3.3 Detalhes de Preparações Alternativas de Chanfro para Juntas de Ângulo Pré-qualificadas (ver C-3.11.2)..........464 C-4.1 Tipo de Soldagem no Cano Que Não Requer Qualificação de Cano (ver Tabela 4.9)..........................................473 C-5.1 Exemplos de Cantos Reentrantes Inaceitáveis (ver C-5.16) .................................................................................484 C-5.2 Exemplos de Boas Práticas para Ajustes de Corte (ver C-5.16) ...........................................................................484 C-5.3 Deslocamento Permissível em Membros Adjacentes (ver C-5.22.3)....................................................................485 C-5.5 Método Típico para Determinar Variações no Nivelamento da Trave da Braçadeira (ver C-5.23.6.1) ................486 C-5.6 Ilustração Mostrando os Métodos de Medição de Abaulamento (ver C-5.23.4)..................................................487 C-5.7 Medição da Inclinação e Deformação da Flange (ver C-5.23.8)...........................................................................488 C-5.8 Tolerâncias nos Pontos de Rolamento (ver C-5.23.10).........................................................................................489 C-6.1 Juntas de Ângulo ou em T de 90º com Reforço de Aço........................................................................................505 C-6.2 Juntas de Ângulo ou Oblíquas em T.....................................................................................................................505 C-6.3 Juntas de Topo com Separação entre Reforço e Junta ..........................................................................................506 C-6.4 Efeito de Abertura da Raiz em Juntas de Topo com Reforço de Aço ...................................................................506 C-6.5 Varredura com Reforço de Aço Soldado por Selagem .........................................................................................507 C-6.6 Resoluções de para Varredura com Reforço de Aço Soldado por Selagem..........................................................507 C-6.7 Ilustração do Critério de Aceitação de Descontinuidade em Conexões Não Tubulares Estaticamente Carregadas ou Tubulares Ciclicamente Carregadas (ver 6.12.1) ..................................................508 C-6.8 Ilustração dos Critérios de Aceitação de Descontinuidade em Conexões Não Tubulares Estaticamente Carregadas ou Tubulares Ciclicamente Carregadas de 1-1/8 in [30 mm] e maiores, Típico de Descontinuidades Randômica Aceitáveis (ver 6.12.1)..........................................................................................509 C-6.9 Ilustração dos Critérios de Aceitação de Descontinuidade em Conexões Não Tubulares Ciclicamente Carregadas em Tensão (ver 6.12.2.1)..............................................................................................510 C-7.1 Defeitos Permissíveis nas Cabeças dos Pinos com Cabeça ..................................................................................514 C-8.1 Intrusões Microscópicas .......................................................................................................................................520 C-8.2 Tempo de Fadiga (ver C-8.4.1).............................................................................................................................520 C-8.3 Preparação da Extremidade com Esmerilhador de Broca (ver C-8.4.1)................................................................521 C-8.4 Preparação da Extremidade Normal para Tensão (ver C-8.4.1)............................................................................521 C-8.5 Retificação Efetiva da Extremidade (ver C-8.4.1)................................................................................................522 C-8.6 Retificação da Extremidade [ver C-8.4.1(2)]........................................................................................................522 C- 8.7 Martelamento [ver C-8.4.1(3)]..............................................................................................................................523 C-8.8 Refusão da Extremidade [ver C-8.4.1(4)].............................................................................................................524
  • 33.
    AWS D1.1/D1.1M:2010 140 1. Códigode Soldagem Estrutural—Aço 1 - Requisitos Gerais 1.1 Âmbito Este código contém os requisitos para fabricar e erigir estruturas de aço soldadas. Quando este código é estipulado em documentos de contrato, deve ser requisitada conformidade com todas as provisões do código, exceto por aquelas provisões que o Engenheiro (ver 1.4.1) ou documentos de contrato especificamente modifiquem ou isentem. A seguir está um resumo das cláusulas do código: 1. Requisitos Gerais. Essa cláusula contém informações básicas sobre o âmbito e limitações do código, definições chave e principais responsabilidades das partes envolvidas com fabricação de aço. 2. Projeto de Conexões Soldadas. Essa cláusula contém requisitos para projeto de conexões soldadas compostas de produtos membros de forma tubular e não tubular. 3. Pré-qualificação. Essa cláusula contém os requisitos para isentar uma WPS (Welding Procedure Specification – Especificação de Procedimento de Soldagem) dos requisitos de qualificação de WPS deste código. 4. Qualificação. Essa cláusula contém os requisitos para qualificação WPS e os testes de qualificação requeridos que devem ser passados a toda a equipe de soldagem (soldadores, operadores de soldagem e soldadores de solda provisória) para realizar soldagens de acordo com este código. 5. Fabricação. Essa cláusula contém requisitos gerais de fabricação e ereção aplicáveis a estruturas de aço soldadas governadas por este código, inclusive os requisitos para metais base, consumíveis de soldagem, técnica de soldagem, detalhes de solda, preparação e montagem de material, mão-de-obra, reparo de solda, e outros requisitos. 6. Inspeção. Essa cláusula contém critérios para a qualificação e responsabilidades de inspetores, critérios de aceitação para soldas de produção, e procedimentos padrão para realizar inspeção visual e NDT (ensaio não-destrutivo). 7. Soldagem de Pinos. Essa cláusula contém os requisitos para a soldagem de pinos em aço estrutural. 8. Reforço e Reparo de Estruturas Existentes. Essa cláusula contém informações básicas pertinentes à modificação de solda ou reparo de estruturas de aço existentes. 1.2 Limitações Este código foi especificamente desenvolvido para estruturas de aço soldadas que utilizam aço carbono ou de baixa liga que são 1/8 in [3 mm] ou mais espessos, com um limite de escoamento específico mínimo de 100 ksi [690 MPa] ou menos. O código pode ser conveniente para governar fabricações estruturais fora do âmbito do objetivo pretendido. No entanto, o Engenheiro deve avaliar tal conveniência, e baseado em tais avaliações, incorporar a documentos de contrato quaisquer alterações necessárias aos requisitos do código para tratar dos requisitos específicos da aplicação que está fora do âmbito do código. O Comitê de Soldagem Estrutural encoraja o Engenheiro a considerar a aplicabilidade
  • 34.
    AWS D1.1/D1.1M:2010 1.REQUISITOS GERAIS 3 de outros códigos D1 da AWS para aplicações envolvendo alumínio (AWS D1.2), chapa de aço igual a ou menor que 3/16 em espessura [5 mm] (AWS D1.3), aço de reforço (AWS D1.4), e aço inoxidável (AWS D1.6). O AASHTO/AWS D1.5 Bridge Welding Code foi especificamente desenvolvido para componentes de soldagem de pontes e é recomendado para essas aplicações. 1.3 Definições Os termos de soldagem usados nesse código devem ser interpretados em conformidade com as definições fornecidas na última edição do Standard Welding Terms and Definitions, A3.0, da AWS, acrescentado do Anexo K deste código e das seguintes definições: 1.3.1 Engenheiro. “Engenheiro” deve ser definido como um indivíduo devidamente designado que age pelo, e em nome do, Proprietário em todos os assuntos no âmbito do código. 1.3.2 Empreiteiro. “Empreiteiro” deve ser definido como qualquer empresa, ou aquele indivíduo representando uma empresa, responsável pela fabricação, ereção, manufatura ou soldagem em conformidade com as provisões deste código. 1.3.3 Inspetores 1.3.3.1 Inspetor do Empreiteiro. “Inspetor do Empreiteiro” deve ser definido como a pessoa devidamente designada que age pelo, e em nome do, Empreiteiro em todas as inspeções e assuntos de qualidade dentro do âmbito deste código e dos documentos de contrato. 1.3.3.2 Inspetor de Verificação. “Inspetor de Verificação” deve ser definido como a pessoa devidamente designada que age pelo, e em nome do, Proprietário ou Engenheiro em todas as inspeções e assuntos de qualidade especificados pelo Engenheiro. 1.3.3.3 Inspetor(es) (não modificado). Quando o termo “Inspetor” é usado sem maiores qualificações com relação às categorias de Inspetor descritas acima, ele aplica-se igualmente ao Inspetor de Empreiteiro e Inspetor de Verificação dentro dos limites da responsabilidade descrita em 6.1.2. 1.3.4 OEM (Original Equipment Manufacturer – Fabricante do Equipamento Original). “OEM” deve ser definido como o único Empreiteiro que assume alguma ou todas as responsabilidades atribuídas por esse código ao Engenheiro. 1.3.5 Proprietário. “Proprietário” deve ser definido como o indivíduo ou empresa que exerce a propriedade legal do produto ou montagem estrutural produzido sob este código. 1.3.6 Termos do Código “Deve,” “Deveria” e “Pode.” “Deve,” “deveria” e “pode” têm o seguinte significado: 1.3.6.1 Deve. Provisões do código que usam “deve” são obrigatórias a menos que especificamente modificado em documentos de contrato pelo Engenheiro. 1.3.6.2 Deveria. A palavra “deveria” é usada para práticas recomendadas que são consideradas benéficas, mas não são requisitos. 1.3.6.3 Pode. A palavra “pode” em uma provisão permite o uso de procedimentos ou práticas opcionais que podem ser usados como uma alternativa ou complemento a requisitos do código. Esses procedimentos opcionais que requerem a aprovação do Engenheiro devem ou ser especificados em documentos de contrato ou requerem a provação do Engenheiro. O Empreiteiro pode usar qualquer opção sem a aprovação do Engenheiro quando o código não especifica que a aprovação do Engenheiro deve ser requisitada. 1.4 Responsabilidades 1.4.1 Responsabilidades do Engenheiro. O Engenheiro deve ser responsável pelo desenvolvimento dos documentos de contrato que governam produtos ou montagens estruturais produzidas sob este código. O Engenheiro pode acrescentar, excluir, ou modificar de outra forma os requisitos deste código para atender aos requisitos particulares de uma estrutura específica. Todos os requisitos que modificam este código devem ser incorporados em documentos de contrato. O Engenheiro deve determinar a adequação de cada detalhe de junta a ser usado na montagem soldada. O Engenheiro deve especificar em documentos de contrato, conforme necessário e conforme aplicável, o seguinte: (1) Requisitos do código que são aplicáveis apenas quando especificado por um Engenheiro. (2) Todo NDT adicional que não é especificamente abordado neste código. (3) Inspeção de Verificação, quando requisitada por um Engenheiro. (4) Critérios de aceitação de solda diferentes dos especificados na Cláusula 6. (5) Critérios de tenacidade CVN para metal de solda, metal base, e/ou HAZ quando requisitado. (6) Para aplicações não tubulares, seja a estrutura estatisticamente ou ciclicamente carregada.
  • 35.
    1. REQUISITOS GERAISAWS D1.1/D1.1M:2010 3 (7) Todos os requisitos adicionais que não são especificamente tratados no código. (8) Para aplicações OEM, as responsabilidades das partes envolvidas. 1.4.2 Responsabilidades do Empreiteiro. O Empreiteiro deve ser responsável pelas qualificações WPSs da equipe de soldagem, pela inspeção do Empreiteiro, e por realizar o trabalho em conformidade com os requisitos deste código e documentos de contrato. 1.4.3 Responsabilidades do Inspetor 1.4.3.1 Inspeção do Empreiteiro. A Inspeção do Empreiteiro deve ser fornecida pelo Empreiteiro e deve ser realizada conforme necessário para assegurar que materiais e mão-de-obra atendem aos requisitos dos documentos de contrato. 1.4.3.2 Inspeção de Verificação. O Engenheiro deve determinar se deve ser realizada Inspeção de Verificação. Responsabilidades para a Inspeção de Verificação devem ser estabelecidas entre o Engenheiro e o Inspetor de Verificação. 1.5 Aprovação Todas as referências à necessidade de aprovação devem ser interpretadas como significando aprovação da Autoridade que tem Jurisdição ou o Engenheiro 1.6 Símbolos de Soldagem Símbolos de Soldagem devem ser aqueles mostrados na última edição de Symbols for Welding, Brazing, and Nondestructive Examination, A2.4, da AWS. Condições especiais devem ser completamente explicadas por notas ou detalhes acrescentados. 1.7 Precauções de Segurança Questões e preocupações de segurança e saúde estão além do âmbito desta norma e portanto não são completamente abordadas aqui. É responsabilidade do usuário estabelecer práticas apropriadas de saúde e segurança. Informações sobre saúde e segurança estão disponíveis em outras fontes, que incluem entre outros: (1) ANSI Z49.1, Safety in Welding, Cutting, and Allied Processes1 (2) Literatura de segurança do fabricante sobre equipamentos e materiais (3) Regulamentos federais, estaduais e locais, ou outros requisitos jurisdicionais (4) Anexo R Práticas de Segurança O trabalho feito em conformidade com este código pode envolver materiais que são considerados perigosos. O usuário deveria determinar a aplicabilidade de quaisquer limitações regulatórias antes do uso. 1.8 Unidades Padrão de Medida Este padrão faz uso tanto das Unidades Habituais dos EUA e do Sistema Internacional de Unidades (SI). As medidas podem não ser exatamente equivalentes; portanto, cada sistema deve ser usado independentemente do outro sem combinação de qualquer forma. O padrão com a designação D1.1:2010 usa Unidades Habituais dos EUA. A norma com designação D1.1M:2010 usa Unidades SI. As últimas são mostradas dentro de colchetes [ ]. 1.9 Documentos de Referência O Anexo U contém uma lista de todos os documentos referidos neste código. 1 ANSI Z49.1 é publicado pela Sociedade Americana de Soldagem. 550 N.W. LeJeune Road, Miami, FL 33126, EUA.
  • 36.
    AWS D1.1/D1.1M:2010 4 Esta páginaestá em branco intencionalmente.
  • 37.
    AWS D1.1/D1.1M:2010 5 2. Projetode Conexões Soldadas 2.1 Âmbito Essa cláusula aborda requisitos para projeto de conexões soldadas. Ela é dividida em quatro partes como se pode ver a seguir: Parte A – Requisitos Comuns para Projeto de Conexões Soldadas (Membros Tubulares e Não-Tubulares) Parte B – Requisitos Específicos para Projeto de Conexões Não-Tubulares (Carregadas Estaticamente ou Ciclicamente). Os requisitos devem ser aplicados como complemento dos requisitos da Parte A. Parte C – Requisitos Específicos para Projeto de Conexões Não-Tubulares (Carregadas Ciclicamente). Quando aplicável, os requisitos devem ser aplicados como complemento aos requisitos das Partes A e B. Parte D – Requisitos Específicos para Projeto de Estruturas Tubulares (Carregadas Estaticamente e Ciclicamente). Quando aplicável, os requisitos devem ser aplicados como complemento dos requisitos da Parte A. Parte A Requisitos Comuns para Projeto de Conexões Soldadas (Membros Tubulares e Não-Tubulares) 2.2 Geral Essa parte contém requisitos aplicáveis ao projeto de todas as conexões soldadas de estruturas tubulares e não-tubulares, independente de carregamento. 2.3 Planos e Especificações de Contrato 2.3.1 Plano e Informações de Desenho. Informações completas a respeito das especificações de metal base, inclusive designações de local, tipo, tamanho e extensão de todas as soldas devem estar claramente exibidos nos panos e especificações de contrato, aqui referidos como documentos de contrato. Se o Engenheiro requerer que soldas específicas sejam realizadas no campo, elas devem estar designadas nos documentos de contrato. Os desenhos de fabricação e ereção, aqui designados como desenhos de oficina, devem distinguir claramente entre soldas de oficina e de campo. 2.3.2 Requisitos de Tenacidade ao Entalhe. Se a tenacidade ao entalhe de juntas soldadas é requerida, o Engenheiro deve especificar a energia mínima absorvida com a temperatura de teste correspondente para a classificação de metal de adição a ser usada, ou o Engenheiro deve especificar que as WPSs sejam qualificadas com testes CVN. Se WPSs com testes CVN são requeridas, o Engenheiro deve especificar a energia mínima absorvida, a temperatura de teste e se o desempenho de teste CVN requerido deve ser em metal de solda ou tanto em metal de solda quanto HAZ (ver 4.2.1.3 e Cláusula 4, Parte D). 2.3.3 Requisitos Específicos de Soldagem. O Engenheiro, nos documentos de contrato, e o Empreiteiro, nos desenhos de oficina, devem indicar aquelas juntas ou grupos de juntas nas quais o Engenheiro ou Empreiteiro requisitam uma ordem específica de montagem, sequência de soldagem, técnica de soldagem ou outras precauções especiais. Ver 5.4.1 e C-5.4.1 para limitações na aplicação de soldagem ESW e EGW. 2.3.4 Tamanho e Comprimento de Solda. Desenhos de projeto de contrato devem especificar o comprimento efetivo de solda, e para soldas em chanfro PJP, o tamanho de solda requerido “(E)”. Para soldas em filete e juntas oblíquas em T, o seguinte deve ser fornecido nos documentos de contrato. (1) Para soldas de filete entre partes com superfícies que se encontram em um ângulo entre 80° e 100°, os documentos de contrato devem especificar a perna de solda da solda de filete. (2) Para soldas entre partes com as superfícies encontrando-se em um ângulo menor que 80° ou maior que 100°, os documentos de contrato devem especificar a garganta de solda efetiva. Soldagens de acabamento e retenções para soldas de filete, se requeridos pelo projeto, devem ser indicados nos documentos de contrato. 2.3.5 Requisitos de Desenho de Oficina. Os desenhos de oficina devem indicar claramente por símbolos de
  • 38.
    AWS D1.1/D1.1M:2010 2.PROJETO DE CONEXÕES SOLDADAS 6 soldagem ou esboços os detalhes de juntas soldadas em chanfro e a preparação do metal base requerida para fazê-los. Tanto a largura como a espessura da tela protetora de aço devem ser detalhadas. 2.3.5.1 Soldas em Chanfro PJP. Desenhos de oficina devem indicar as profundidades “S” de solda em chanfro para atingir o tamanho de solda “(E)” requerido para o processo de soldagem e posição de soldagem a ser usada. 2.3.5.2 Soldas de Filete e Soldas em Juntas Oblíquas em T. O seguinte deve ser fornecido nos desenhos de oficina: (1) Para soldas de filete entre partes com superfícies encontrando-se a um ângulo entre 80° e 100°, desenhos de oficina devem mostrar o tamanho da perna de solda, (2) Para soldas entre partes com superfícies encontrando-se a um ângulo menor que 80° ou maior que 100°, os desenhos de oficina devem mostrar o arranjo detalhado de soldas e o tamanho de perna requerido para efeitos da geometria da junta e, quando apropriado, a redução de perda Z para o processo a ser usado e o ângulo, (3) Soldagens de acabamento e retenções. 2.3.5.3 Símbolos de Soldagem. Os documentos de contrato devem mostrar requisitos de solda em chanfro CJP ou PJP. Documentos de contrato não precisam exibir o tipo de chanfro ou dimensões de chanfro. O símbolo de soldagem sem dimensões e sem “CJP” no final designa uma solda CJP como segue: O símbolo de soldagem sem dimensão e sem CJP na parte de trás designa uma solda que irá desenvolver a resistência adjacente do metal base em tensão e cisalhamento. Um símbolo de soldagem para uma solda em chanfro PJP deve mostrar dimensões entre parênteses abaixo “( )” e/ou acima “( )” da linha de referência para indicar os tamanhos de solda em chanfro na seta e outros lados da junta de solda, respectivamente, como mostrado abaixo: 2.3.5.4 Dimensões Pré-qualificadas de Detalhe. Os detalhes de junta descritos em 3.12 (PJP) e 3.13 (CJP) têm repetidamente mostrado sua adequação em fornecer as condições e liberações necessárias para depositar e fundir metal de solda confiável a metal base. No entanto, o uso desses detalhes não deve ser interpretado como implicando consideração dos efeitos do processo de soldagem em metal base além do limite de fusão, nem adequação do detalhe de junta a uma dada aplicação. 2.3.5.5 Detalhes Especiais. Quando detalhes especiais em chanfro são requeridos, eles devem estar detalhados nos documentos de contrato. 2.3.5.6 Requisitos Específicos de Inspeção. Quaisquer requisitos específicos de inspeção devem estar anotados nos documentos de contrato. 2.4 Áreas Efetivas 2.4.1 Soldas em Chanfro 2.4.1.1 Comprimento Efetivo. O comprimento efetivo máximo de solda de qualquer solda em chanfro, a despeito da orientação, deve ser a largura da parte encaixada, perpendicular à direção da resistência compressiva ou de tração. Para soldas em chanfro Para soldas em chanfro com transmissão de cisalhamento, o comprimento efetivo é o comprimento especificado. 2.4.1.2 Tamanho Efetivo de Soldas em Chanfro CJP. O tamanho de solda de uma solda em chanfro CJP deve ser a espessura da parte mais fina encaixada. Um aumento na área efetiva para cálculos de projeto para reforço de solda deve ser proibido. Os tamanhos de soldas em chanfro para conexões em T-, Y-, e K em construção tubular são mostrados na Tabela 3.6. 2.4.1.3 Tamanho Mínimo de Soldas em Chanfro PJP. Soldas em chanfro PJP devem ser iguais ou maiores que o tamanho “(E)” especificado em 3.12.2.1 a menos que o WPS seja qualificado em conformidade com a Cláusula 4. 2.4.1.4 Tamanho Efetivo de Soldas em Chanfro Curvado. O tamanho efetivo das soldas em chanfro curvado quando preenchidas por jateamento deve ser como mostrado na Tabela 2.1, exceto quando permitido em 4.11.5. Para soldas em chanfro curvado sem preenchimento por jateamento, a falta de enchimento U deve ser deduzida. Para soldas em chanfro em V curvado para superfícies com diferentes raios R, o menor R deve ser usado. Para soldas em chanfro curvado em seções tubulares retangulares, R deve ser tomado como duas vezes a espessura da parede. 2.4.1.5 Área Efetiva de Soldas em Chanfro. A área efetiva das soldas em chanfro deve ser o comprimento efetivo multiplicado pelo tamanho efetivo de solda. 2.4.2 Soldas de Filete 2.4.2.1 Comprimento Efetivo (Reto). O comprimento efetivo de uma solda de filete reto deve ser o comprimento geral do tamanho completo de filete, inclusive soldagens de acabamento. Nenhuma redução no comprimento efetivo deve ser assumida nos cálculos de projeto para permitir o início ou fim de uma cratera de solda. 2.4.2.2 Comprimento Efetivo (Curvo). O comprimento efetivo de uma solda de filete curvado deve ser medido ao longo da linha central da garganta efetiva. 2.4.2.3 Comprimento Mínimo. O comprimento mínimo de uma solda de filete deve ser pelo menos quatro vezes o tamanho nominal, ou o tamanho efetivo
  • 39.
    AWS D1.1/D1.1M:2010 2.PROJETO DE CONEXÕES SOLDADAS 7 da solda deve ser considerado para não exceder 25% de seu comprimento efetivo. 2.4.2.4 Soldas de Filete Descontínuas (Comprimento Mínimo). O comprimento mínimo de segmentos de uma solda de filete descontínua deve ser 1-1/2 in [38 mm]. 2.4.2.5 Comprimento Máximo Efetivo. Para soldas de filete carregadas na extremidade com um comprimento de até 100 vezes a dimensão da perna, á permitido tomar o comprimento efetivo como igual ao comprimento real. Quando o comprimento da solda de filete carregada na extremidade excede 100, mas não mais que 300 vezes o tamanho da solda, o comprimento efetivo deve ser determinado ao multiplicar o comprimento real pelo coeficiente de redução . ( ) Onde = coeficiente de redução L = comprimento real da solda carregada na extremidade, in [mm] w = tamanho da perna de solda, in [mm] Quando o comprimento excede 300 vezes o tamanho da perna, o comprimento efetivo deve ser tomado como 180 vezes o tamanho da perna. 2.4.2.6 Cálculo de Garganta Efetiva. Para soldas de filete entre partes que se encontram em ângulos entre 80° e 100° a garganta efetiva deve ser tomada como a distância mais curta da raiz da junta à face da junta de uma solda diagramática de 90° (ver Anexo A). Para soldas em ângulos agudos entre 60° e 80° e para soldas em ângulos obtusos maiores que 100°, o tamanho de perna de solda requerido para fornecer a garganta efetiva especificada deve ser calculado considerando a geometria (ver Anexo B). Pra soldas em ângulos agudos entre 60°e 30°, o tamanho de perna deve ser aumentado pela dimensão de perda Z para considerar a incerteza de metal de solda bom no passe de raiz do ângulo estreito para o processo de soldagem ser usado (ver 2.4.3). 2.4.2.7 Soldas de Filete de Reforço. A garganta efetiva de uma combinação de solda em chanfro PJP e uma solda de filete deve ser a distância mais curta da raiz de junta à face de solda da solda diagramática menos 1/8 in [3 mm] para qualquer detalhe de solda requerendo tal dedução (ver Figura 3.3 e Anexo A). 2.4.2.8 Tamanho Mínimo. O tamanho mínimo de solda de filete não deve ser menor que o tamanho requerido para transmitir a carga nem que o fornecido em 5.14. 2.4.2.9 Tamanho Máximo da Solda em Juntas Sobrepostas. O tamanho máximo da solda de filete detalhada ao longo das bordas do metal base em juntas sobrepostas deve ser o seguinte: (1) a espessura do metal base, para metal menos espesso que 1/4 in [6 mm] (ver Figura 2.1, Detalhe A). (2) 1/16 in [2 mm] menos que a espessura do metal base, para metal 1/4 in [6 mm] ou mais em espessura (ver Figura 2.1, Detalhe B), a menos que a solda seja designada no desenho de oficina para ser construída para obter espessura total de garganta para um tamanho de perna igual à espessura do metal base. Na condição de soldagem em bruto, a distância entre a aresta do metal base e a extremidade da solda pode ser menor que 1/16 in [2 mm] dado que o tamanho da solda seja claramente verificável. 2.4.2.10 Área Efetiva de Soldas de Filete. A área efetiva deve ser o comprimento efetivo da solda multiplicado pala garganta efetiva. 2.4.3 Juntas Oblíquas em T 2.4.3.1 Geral. Juntas em T nas quais o ângulo entre as partes encaixadas é maior que 100° ou menor que 80° devem ser definidas como juntas oblíquas em T. Detalhes pré-qualificados de juntas oblíquas em T são mostrados na Figura 3.11. Os detalhes de juntas para os lados agudos e obtusos podem ser usados conjuntamente ou independentemente dependendo das condições de serviço e projeto com consideração apropriada para efeitos de excentricidade. 2.4.3.2 Soldas em Ângulos Agudos entre 80° e 60° e em Ângulos Obtusos Maiores que 100°. Quando soldas são depositadas em ângulos entre 80° e 60° ou em ângulos maiores que 100° os documentos de contrato devem especificar a garganta efetiva requerida. Os desenhos de oficina devem mostrar claramente a colocação de soldas e as dimensões de perna requeridas para satisfazer a garganta efetiva requerida (ver Anexo B). 2.4.3.3 Soldas em Ângulos entre 60° e 30°. Quando a soldagem é necessária em um ângulo que é menor que 60° mas igual ou maior que 30° [Figura 3.11(D)], a garganta efetiva deve ser aumentada pela compensação de perda Z (Tabela 2.2). Os documentos de contrato devem especificar a garganta efetiva requerida. Os desenhos de oficina devem mostrar as dimensões de perna requeridas para satisfazer a garganta de solda requerida, aumentada pela compensação de perda Z (Tabela 2.2) (ver Anexo B para cálculo de garganta efetiva). 2.4.3.4 Soldas em Ângulos Menores que 30°. Soldas depositadas em ângulos agudos menores que 30° não devem ser considerados como efetivos na transmissão de forças aplicadas exceto quando modificados para estruturas tubulares como em 4.13.4.2. 2.4.3.5 Comprimento Efetivo de Juntas Oblíquas em T. O comprimento efetivo de juntas oblíquas em T deve ser o comprimento geral do tamanho total da solda. Nenhuma redução deve ser presumida em cálculo de projeto para permitir o início ou parada da solda.
  • 40.
    AWS D1.1/D1.1M:2010 2.PROJETO DE CONEXÕES SOLDADAS 8 2.4.3.6 Tamanho Mínimo de Solda de Junta Oblíqua em T. Os requisitos de 2.3.2.8 devem aplicar- se. 2.4.3.7 Garganta Efetiva de Juntas Oblíquas em T. A garganta efetiva de uma junta oblíqua em T em ângulos entre 60° e 30° deve ser a distância mínima da raiz à face diagramática, menos a dimensão da redução de perda Z. A garganta efetiva de uma junta oblíqua em T em ângulos entre 80° e 60° e em ângulos maiores que 100° deve ser tomada como a distância mais curta da raiz da junta à face de solda. 2.4.3.8 Área Efetiva de Juntas Oblíquas em T. A área efetiva de juntas oblíquas em T deve ser a garganta efetiva especificada multiplicada pelo comprimento efetivo. 2.4.4 Soldas de Filete em Buracos e Ranhuras 2.4.4.1 Limitações de Diâmetro e Largura. O diâmetro mínimo do buraco ou da largura da ranhura em que uma solda de filete será depositada não deve ser menor que a espessura da parte em que é feita mais 5/16 in [8 mm]. 2.4.4.2 Extremidades de Ranhuras. Exceto por aquelas extremidades que se estendem à aresta da parte, as extremidades da ranhura devem ser semicirculares ou devem ter as os cantos arredondados para um raio não menor que a espessura da parte na qual é feita. 2.4.4.3 Comprimento Efetivo de Soldas de Filete em Buracos ou Ranhuras. Para soldas de filete em buracos ou ranhuras, o comprimento efetivo deve ser o comprimento da solda ao longo da linha de centro da garganta. 2.4.4.4 Área Efetiva de Soldas de Filete em Buracos ou Ranhuras. A área efetiva deve ser o comprimento efetivo multiplicado pela garganta efetiva. No caso de soldas de filete de tal tamanho que elas sobrepõem na linha de centro quando depositadas em buracos ou ranhuras, a área efetiva não deve ser tomada como maior que a área de seção transversal do buraco ou ranhura no plano da superfície de contato. 2.4.5 Soldas de Tampão 2.4.5.1 Limitações de Diâmetro e Largura. O diâmetro mínimo do buraco ou a profundidade da ranhura em que uma solda de tampão deve ser depositada não deve ser menos que a espessura da parte na qual é feita mais 5/16 in [8 mm.]. O diâmetro máximo do buraco ou largura da ranhura não deve exceder o diâmetro mínimo mais 1/8 in [3 mm] ou 2-1/4 vezes a espessura da parte, o que for maior. 2.4.5.2 Comprimento e Forma da Ranhura. O comprimento da ranhura em que soldas de tampão serão depositadas não deve exceder dez vezes a espessura da parte em que é feita. As extremidades da ranhura devem ser semicirculares ou devem ter os cantos arredondados para um raio não menor que a espessura da parte em que é feita. 2.4.5.3 Área Efetiva de Soldas de Tampão. A área efetiva de soldas de tampão deve ser a área nominal do buraco ou ranhura no plano da superfície de contato. 2.4.5.4 Profundidade de Enchimento. A profundidade mínima de enchimento de soldas de tampão deve atender aos seguintes requisitos: (1) para soldas de tampão em material com espessura de 5/8 in [16 mm] ou menos, a espessura do material. (2) para soldas de tampão em materiais com espessura maior que 5/8 in [16 mm], metade da espessura do material ou 5/8 in [16 mm], o que for maior. Em nenhum caso é requisitado que a profundidade mínima de enchimento seja maior que a espessura da parte mais fina sendo juntada. Parte B Requisitos Específicos para Projeto de Conexões Não-Tubulares (Carregadas Estaticamente ou Ciclicamente) 2.5 Geral Os requisitos específicos da Parte B juntamente com os requisitos da Parte A devem aplicar-se a todas as conexões de membros não-tubulares sujeitas a carregamento estático. Os requisitos das partes A e B, exceto quando modificados pela parte C, devem aplicar- se também a carregamento cíclico. 2.6 Tensões 2.6.1 Tensões Calculadas. As tensões calculadas a serem comparadas com as tensões permissíveis devem ser tensões nominais determinadas por análise apropriada ou tensões determinadas a partir dos requisitos mínimos de resistência da junta que podem ser especificados nas especificações de projeto aplicáveis que este código para projeto de conexões soldadas invoca. 2.6.2 Tensões Calculadas Devidas a Excentricidade. No projeto de juntas soldadas, a tensão calculada a ser comparada com tensões permissíveis deve incluir aquelas devidas a excentricidade, se as houver, em alinhamento de partes conectadas e a posição, tamanho e tipo de soldas, exceto o que consta a seguir: para estruturas estaticamente carregadas, o local de soldas de filete para equilibrar as forças ao redor do(s) eixo(s) neutro(s) para conexões de extremidade de ângulo único, ângulo duplo e membros similares não é necessário. Em tais membros, arranjos de solda no calcanhar e ponta de membros de ângulo podem ser distribuídos para adaptar-se ao comprimento de várias arestas disponíveis. 2.6.3 Tensões Permissíveis de Metal Base. As tensões calculadas de metal base não devem exceder as tensões permissíveis especificadas nas especificações de projeto aplicáveis. 2.6.4 Tensões Permissíveis de Metal de Solda. As tensões calculadas na área efetiva de juntas soldadas não
  • 41.
    AWS D1.1/D1.1M:2010 2.PROJETO DE CONEXÕES SOLDADAS 9 devem exceder as tensões permissíveis fornecidas na Tabela 2.3, exceto como permitido por 2.6.4.2, 2.6.4.3, e 2.6.4.4. O uso de 2.6.4.2 deve ser limitado à análise de uma única solda ou grupo de soldas de filete linear consistindo de soldas de filete linear paralelas todas carregadas no mesmo ângulo. 2.6.4.1 Tensão em Soldas de Filete. A tensão em soldas de filete deve ser considerada como cisalhamento aplicado à área efetiva para qualquer direção de carga aplicada. 2.6.4.2 Tensão Permissível Alternativa de Solda de Filete. Para uma solda de filete linear única ou grupos de solda de filete consistindo de soldas de filete linear paralelas todas carregadas no mesmo ângulo e carregadas em plano através do centro de gravidade do grupo de solda, a tensão permissível pode ser determinada pela Fórmula (1): Fórmula (1) ( ) onde = unidade de tensão permissível = número de classificação de eletrodo, isto é, classificação de resistência de eletrodo Θ = ângulo entre a direção da força e o eixo do elemento de solda, graus 2.6.4.3 Centro de Rotação Instantâneo. As tensões permissíveis em elementos de solda dentro de um grupo de solda que são carregados em plano e analisados usando um método instantâneo de centro de rotação para manter compatibilidade de deformação, e o comportamento de deformação de carga não linear de soldas carregadas de ângulo variável, devem ser o seguinte: ∑ Fv ∑ Fvi ( ) ( ) F( ) ( , , ) , 3 ∑ ( ) ( ) onde = Força interna total na direção x = Força interna total na direção y = componente x de tensão = componente y de tensão M = Momento de forças internas ao redor do centro de rotação instantâneo Ρ = ∆i /∆m taxa de deformação de elemento “i” a deformação no elemento em tensão máxima ( ) , deformação de elemento de solda em tensão máxima, in [mm] ( ) , < 0,17 W, deforma-ção de elemento de solda em tensão de ruptura (fratura), normalmente em elemen-to mais distante do centro de rotação instantâneo, in [mm] W = tamanho de perna na solda de filete, in [mm] = deformação de elementos de solda em níveis de tensão intermediários, linearmente proporcionado à deformação crítica baseada em distância do centro de rotação instantâneo, in [mm] = . x = componente de y = componente de = distância do centro de rotação instantâneo para elemento de solda com taxa mínima , in [mm] 2.6.4.4 Grupos de Solda Concentricamente Carregados. De forma alternativa, para o caso especial de um grupo de solda concentricamente carregado, a tensão permissível de cisalhamento para cada elemento de solda determinado usando a Fórmula (2) e as cargas permissíveis de todos os elementos calculados e adicionados. Fórmula (2) onde = unidade de tensão permissível = resistência de tração nominal de metal de adição = o coeficiente de resistência equivalente para solda de filete carregadas obliquamente, escolhidas da Tabela 2.4. 2.6.5 Aumento de Tensão Permissível. Onde as especificações de projeto aplicáveis permitem o uso de tensões aumentadas no metal base por qualquer razão, um aumento correspondente deve ser aplicado às tensões permissíveis dadas aqui, mas não às faixas de tensão permitidas por metal base ou metal de solda sujeito a carregamento cíclico. 2.7 Configuração e Detalhes de Junta 2.7.1 Considerações Gerais. Conexões soldadas devem ser projetadas para satisfazer a resistência e rigidez ou requisitos de flexibilidade das especificações gerais invocadas. 2.7.2 Conexões e Emendas de Membros de Compressão 2.7.2.1 Conexões e Emendas Projetadas para Suportar Conexões que não sejam com a Placa Base. A menos que especificado de outra forma em documentos de contrato, emendas de coluna que são projetadas para suportar devem ser conectadas por
  • 42.
    AWS D1.1/D1.1M:2010 2.PROJETO DE CONEXÕES SOLDADAS 10 soldas em chanfro PJP ou por detalhes soldados de filete suficientes para manter as partes no lugar. Quando membros de compressão que não sejam colunas são projetados para suportar soldas de emendas ou conexões, devem ser projetados para manter todas as partes em alinhamento e devem ser proporcionadas para 50% da força no membro. Os requisitos das Tabelas 3.4 ou 5.8 devem aplicar-se. 2.7.2.2 Conexões e Emendas Não Projetados para Suportar Exceto por Conexões a Placas Base. Soldas que juntem emendas em colunas e emendas e conexões em outros membros de compressão que não sejam projetados para suportar devem ser projetadas para transmitir a força nos membros, a menos que soldas CJP ou requisitos mais restritivos sejam especificados em documentos de contrato ou especificações reguladoras. Os requisitos da Tabela 3.4 ou Tabela 5.8 devem aplicar-se. 2.7.2.3 Conexões com Placas Base. Em placas base de colunas e outros membros de compressão, a conexão deve ser adequada para manter o membro com segurança no lugar. 2.7.3 Metal Base Através de Carregamento de Espessura. Em juntas T e de ângulo cuja função é transmitir tensão normal à superfície de uma parte conectada, especialmente quando a espessura do metal base do membro de ramificação ou o tamanho de solda requerido é 3/4 in [20 mm] ou maior, atenção especial deve ser dada durante o projeto, seleção de metal base e detalhamento. Detalhes de junta que minimizam a intensidade de tensão em metal base sujeito a tensão na direção através-espessura devem ser usadas quando for prático. A especificação de tamanhos de solda maiores que o necessário para transmitir tensão calculada deve ser evitada. 2.7.4 Combinações de Soldas. Exceto conforme fornecido aqui, se duas ou mais soldas de tipo diferente (chanfro, filete, tampão) são combinadas para dividir a carga em uma conexão simples, a capacidade da conexão deve ser calculada como a soma das soldas individuais determinadas com relação à direção da carga aplicada. Esse método de adicionar capacidades individuais de soldas não se aplica a soldas de filete reforçando soldas em chanfro PJP (ver Anexo A). 2.7.5 Superfície de Contorno em Juntas de Topo, de Ângulo e em T. Soldas de filete podem ser aplicadas sobre soldas em chanfro CJP e PJP em juntas de topo juntando partes de largura ou espessura desigual, juntas de ângulo e em T para o propósito de contornar a face de solda ou para reduzir concentrações de tensão. Quando tal superfície contornando soldas de filete é usada em aplicações carregadas estaticamente, o tamanho precisa ser mais que 5/16 in [8 mm]. O reforço similar a filete na superfície de juntas em T e de ângulo de soldas em chanfro que naturalmente ocorre não deve ser causa de rejeição nem precisa ser removido contanto que não interfira com outros elementos da construção. O raio mínimo de contorno não precisa ser fornecido. 2.7.6 Buracos de Acesso de Solda. Quando buracos de acesso de solda são requeridos, eles devem ser dimensionados para fornecer liberação necessária para deposição de metal de solda bom. Os requisitos de forma e tamanho de 5.17.1 devem aplicar-se. O projetista e detalhista devem reconhecer que buracos com o tamanho mínimo requerido podem afetar a área máxima líquida disponível no metal base conectado. 2.7.7 Sodas com Rebites ou Parafusos. Conexões que são soldadas a um membro e parafusadas ou rebitadas a outro devem ser permitidas. Quando parafusos e soldas dividem a carga de uma superfície de contato comum, a compatibilidade de deformação entre os parafusos e soldas deve ser considerada (ver comentário). 2.8 Configuração e Detalhes de Junta — Soldas em Chanfro 2.8.1 Transições em Espessuras e Larguras. Para estruturas estaticamente carregadas, a superfície contornando as soldas de filete precisa ser fornecida. Quando superfícies contornando soldas de filete são requeridas pelo Engenheiro, elas devem ser especificadas nos documentos de contrato (ver Figura 2.3). 2.8.2 Proibição de Soldas em Chanfro. CJP de Comprimento Parcial. Soldas em chanfro CJP descontínuas ou de comprimento parcial devem ser proibidas a menos que membros construídos de elementos conectados por soldas de filete possam ter soldas em chanfro de comprimento limitado em pontos de aplicação de carga localizada para participar na transferência de carga localizada. A solda em chanfro deve estender em tamanho uniforme para pelo menos o comprimento requerido para transferir a carga. Além desse comprimento, o chanfro deve ser feito com uma transição em profundidade a zero sobre uma distância não menor que quatro vezes sua profundidade. O chanfro deve ser preenchido por jateamento antes da aplicação da solda de filete. 2.8.3 Soldas em Chanfro PJP Descontínuas. Soldas em chanfro PJP descontínuas, bisel curvado e soldas em chanfro curvado podem ser usadas para transferir tensão de cisalhamento entre as partes conectadas. 2.8.4 Remoção de Guia de Solda. Para estruturas não- tubulares estaticamente carregadas, as guias de solda não precisam ser removidas. Quando a remoção é necessária, ou quando os requisitos de acabamento da superfície são outros que os descritos em 5.15.4, os requisitos devem ser especificados nos documentos de contrato. 2.9 Detalhes e Configuração de Junta — Juntas de Filete Soldadas 2.9.1 Juntas Sobrepostas 2.9.1.1 Soldas de Filete Transversal. Soldas de filete transversal em juntas sobrepostas transferindo tensão entre partes carregadas axialmente devem ser soldadas em filete duplo (ver Figura 2.4) exceto quando a deflexão da junta é suficientemente retida para evitar a
  • 43.
    AWS D1.1/D1.1M:2010 2.PROJETO DE CONEXÕES SOLDADAS 11 abertura sob carga. 2.9.1.2 Sobreposição Mínima. A sobreposição mínima de partes em juntas sobrepostas carregando tensão deve ser cinco vezes a espessura da parte mais fina, mas não menos que 1 in [25 mm]. A menos que a deflexão fora do plano seja prevenida, elas devem ser soldadas em filete duplo (ver Figura 2.4) ou juntas por pelo menos duas linhas transversais de soldas de tampão ou dois ou mais filetes longitudinais de solda ou solda de tampão. 2.9.2 Soldas de Filete Longitudinal. Se apenas soldas de filete longitudinal são usadas em juntas sobrepostas de conexões de extremidade de barra chata ou membros de placa, o comprimento de cada solda de filete não deve ser menor que a distância perpendicular entre elas (ver Figura 2.5). O espaçamento transversal de soldas de filete transversal usadas em conexões de extremidade não deve exceder 16 vezes a espessura da parte mais fina conectada a menos que provisões adequadas sejam feitas (como por soldas de tampão intermediárias) para prevenir flambagem ou separação das partes. As soldas de filete longitudinal podem ser ou nas arestas dos membros ou em ranhuras. O projeto de conexões usando soldas de filete longitudinal para membros que não sejam seções transversais de barra chata deve ser como fornecido nas especificações gerais de projeto. 2.9.3 Terminações de Soldas de Filete 2.9.3.1 Geral. Terminações de filete de solda podem estender-se às extremidades de partes, ou podem ser interrompidas, ou podem ter soldagens de acabamento, exceto como limitado pelos seguintes casos: 2.9.3.2 Juntas de Sobreposição Sujeitas a Tensão. Em juntas de sobreposição em que uma parte estende-se além da aresta ou lado de uma parte sujeita a tensão de tração calculada, as soldas de filete devem terminar com não menos que o tamanho da solda do começo da extensão (ver Figura 2.6). 2.9.3.3 Comprimento Máximo de Soldagem de Acabamento. Juntas soldadas devem ser arranjadas para permitir a flexibilidade assumida no projeto da conexão. Se as pernas salientes do metal base de conexão são anexadas a soldas com soldagem de acabamento, o comprimento da soldagem de acabamento não deve exceder quatro vezes o tamanho nominal da solda (ver Figura 2.7 para exemplos de conexões flexíveis). 2.9.3.4 Soldas de Reforço Transversais. Exceto quando as extremidades de filetes estão soldadas à flange, soldas de filete juntando reforços transversais a braçadeiras de trave devem começar ou terminar a não menos que quarto vezes e não mais que seis vezes a espessura da braçadeira a partir da extremidade da braçadeira das soldas braçadeira-a-flange. 2.9.3.5 Lados Opostos de um Plano Comum. Soldas de filete nos lados opostos de um plano comum devem ser interrompidos no canto comum a ambas as soldas (ver Figura 2.8). 2.9.4 Soldas de Filete em Buracos ou Ranhuras. Soldas de filete em buracos ou ranhuras em juntas sobrepostas podem ser usados para transferir cisalhamento ou prevenir flambagem ou separação entre partes sobrepostas. Espaçamento e dimensões mínimos de buracos ou ranhuras para soldas de filete devem estar em conformidade com os requisitos de 2.4.4.1, 2.4.4.2, 2.9.1, 2.9.2, e 2.10. Essas soldas de filete podem sobrepor sujeitas às provisões de limitação de 2.4.4.4. Soldas de filete em buracos ou ranhuras não são consideradas soldas de tampão. 2.9.5 Soldas de Filete Descontínuas. Soldas de filete descontínuas podem ser usadas para transferir tensão entre partes conectadas. 2.10 Detalhes e Configuração de Juntas – Soldas de Tampão 2.10.1 Espaçamento Mínimo (Soldas de Tampão - Plug). O espaçamento mínimo de centro a centro de soldas de tampão (plug) deve ser quarto vezes o diâmetro do buraco. 2.10.2 Espaçamento Mínimo (Soldas de Tampão - Slot). O espaçamento mínimo de centro a centro de linhas de soldas de tampão (slot) em uma direção transversal ao seu comprimento deve ser quatro vezes a largura da ranhura. O espaçamento mínimo de centro a centro em uma direção longitudinal deve ser duas vezes o comprimento da ranhura. 2.10.3 Dimensões Pré-qualificadas. Dimensões para soldas de tampão pré-qualificadas são descritas em 2.4.5 e 3.10. 2.10.4 Proibição em Aços Resfriados e Temperados. Soldas de tampão devem ser proibidas em aços resfriados e temperados com mínimo especificado maior que 70 ksi [490 MPa]. 2.11 Placas de Enchimento Sempre que for necessário usar placas de enchimento em juntas requeridas a transferir força aplicada, as placas de enchimento e as soldas de conexão devem estar em conformidade com os requisitos de 2.11.1 ou 2.11.2, conforme aplicável. 2.11.1 Placas de Enchimento Finas. Placas de enchimento com espessura menor que 1/4 in [6 mm] não devem ser usadas para transferir tensão. Quando a espessura da placa de enchimento é menor que 1/4 in [6 mm], ou quando a espessura da placa de enchimento é maior que 1/4 in [6 mm] mas não adequada para transferir a força aplicada entre as partes conectadas, a placa de enchimento deve ser mantida flush com a aresta da parte de for a conectada, e o tamanho da solda deve ser aumentado sobre o tamanho requerido por uma quantia igual à espessura da placa de enchimento (ver Figura 2.9) 2.11.2 Placas de Enchimento Grossas. Quando a espessura da placa de enchimento é adequada para transferir a força aplicada entre as partes conectadas, a placa de enchimento deve estender-se além das arestas do metal base de fora conectado. As soldas juntando o metal base de for a conectado à placa de enchimento
  • 44.
    AWS D1.1/D1.1M:2010 2.PROJETO DE CONEXÕES SOLDADAS 12 devem ser suficientes para transmitir a força à placa de enchimento, e a área sujeita à força aplicada deve ser adequada para evitar excesso de tensão na placa de enchimento. As soldas juntando a placa de enchimento ao metal base de dentro conectado deve ser suficiente para transmitir a força aplicada (ver Figura 2.10). 2.11.3 Requisitos de Desenho de Oficina. Juntas que requeiram placas de enchimento devem ser completamente detalhadas em desenhos de oficina e ereção. 2.12 Membros Construídos 2.12.1 Soldagem Mínima Requerida. Se duas ou mais placas ou formas laminadas são usados para construir um membro, soldagem suficiente (do tipo filete ou tampão) deve ser fornecida para fazer as partes agirem em uníssono mas não menos que aquela que pode ser necessária para transmitir a tensão calculada entre as partes juntadas. 2.12.2 Espaçamento Máximo de Soldas Descontínuas 2.12.2.1 Geral. Exceto conforme pode ser fornecido por 2.12.2.2 ou 2.12.2.3, o espaçamento máximo longitudinal de soldas descontínuas conectando um componente de placa a outros componentes não deve exceder 24 vezes a espessura da placa mais fina nem exceder 12 in [300 mm]. O espaçamento longitudinal entre soldas descontínuas conectando duas ou mais formas laminadas não deve exceder 24 in [600 mm]. 2.12.2.2 Membros de Compressão. Em membros de compressão construídos, exceto como fornecido em 2.12.2.3, o espaçamento longitudinal de segmentos de solda de filete ao longo das arestas de um componente de placa de fora a outros componentes não deve exceder 12 in [300 mm] nem a espessura da placa vezes √ (Fy = limite de escoamento mínimo especificado e E é o módulo de elasticidade de Young para o tipo de aço sendo usado.) Quando segmentos de solda de filete descontínua são escalonados ao longo de arestas opostas de um componente de placa de fora mais estreito que a espessura fornecida pela próxima sentença, o espaçamento não deve exceder 18 in [460 mm] nem a espessura da placa vezes √ . A espessura não suportada de web, placa de cobertura, ou diafragmas, entre linhas adjacentes de soldas, não deve exceder a espessura da placa vezes √ Quando o espaçamento transversal não suportado excede esse limite, mas uma porção de sua espessura não maior que √ vezes a espessura satisfaria o requisito de tensão, o membro deve ser considerado aceitável. 2.12.2.3 Aço Não Pintado Exposto às Intempéries. Para membros de aço não pintado expostos às intempéries e à corrosão atmosférica, se soldas de filete descontínuas são usadas, o espaçamento não deve exceder 14 vezes a espessura da placa mais fina nem 7 in [180 mm]. Parte C Requisitos Específicos para Projeto de Conexões Não-Tubulares (Carregadas Ciclicamente) 2.13 Geral 2.13.1 Aplicabilidade. A Parte C aplica-se apenas a membros e conexões não-tubulares sujeitos a carga cíclica, dentro da fase elástica, de frequência e magnitude suficiente para iniciar trincas e falência progressiva (fadiga). As provisões da Parte C fornecem um método para avaliar os efeitos de flutuações repetidas de tensão em elementos estruturais soldados não-tubulares, o qual deve ser aplicado para minimizar a possibilidade de uma falência por fadiga. 2.13.2 Outras Provisões Pertinentes. As provisões das Partes A e B devem aplicar-se ao projeto de membros e conexões sujeitos aos requisitos da Parte C. 2.13.3 Responsabilidade do Engenheiro. O Engenheiro deve fornecer detalhes completos, inclusive tamanhos de solda, ou deve especificar o ciclo de vida planejado e a faixa máxima de momentos, cisalhamentos, e reações para as conexões em documentos de contrato. 2.14 Limitações 2.14.1 Limite de Faixa de Tensão. Nenhuma avaliação de resistência de fadiga deve ser requerida se a faixa de tensão de carga viva for menor que o limite da faixa de tensão, FTH (ver Tabela 2.5). 2.14.2 Fadiga de Ciclo Baixo. Provisões da Parte C não são aplicáveis a casos de carga de ciclo baixo que induzem tensões calculadas para a faixa inelástica de tensão. 2.14.3 Proteção contra Corrosão. As resistências de fadiga descritas na Parte C são aplicáveis a estruturas com proteção contra corrosão adequada, ou sujeitas apenas a ambientes moderadamente corrosivos tais como condições atmosféricas normais. 2.14.4 Membros Redundantes-Não-Redundantes. Este código não reconhece mais uma distinção entre membros redundantes e não-redundantes. 2.15 Cálculo de Tensões 2.15.1 Análise Elástica. Tensões calculadas e faixas de tensão devem ser nominais, baseadas em análise elástica de tensão no nível do membro. As tensões não precisam ser amplificadas por fatores de concentração de tensão para descontinuidades geométricas.
  • 45.
    AWS D1.1/D1.1M:2010 2.PROJETO DE CONEXÕES SOLDADAS 13 2.15.2 Tensão Axial e Flexão. No caso de tensão axial combinada com flexão, a tensão máxima combinada deve ser aquela para casos de carga simultânea aplicada. 2.15.3 Seções Simétricas. Para membros que têm seções transversais simétricas, as soldas de conexão devem preferencialmente ser arranjadas simetricamente sobre o eixo do membro, se o arranjo simétrico não for prático, as tensões totais, inclusive aquelas resultantes de excentrici- dade de junta, devem ser incluídas no cálculo da faixa de tensão. 2.15.4 Membros de Ângulo. Para membros de ângulo axialmente tensionados, o centro de gravidade das soldas de conexão deve estar entre a linha de centro de gravidade da seção transversal do ângulo e o centro da perna conectada, caso em que os efeitos de excentricidade podem ser ignorados. Se o centro de gravidade das soldas de conexão está fora dessa zona, as tensões totais, inclusive aquelas resultantes de excentricidade da junta a partir do centro de gravidade do ângulo, devem ser incluídas no cálculo de faixa de tensão. 2.16 Tensões Permissíveis e Faixas de Tensão 2.16.1 Tensões Permissíveis. As unidades de tensões calculadas em soldas não devem exceder as tensões permissíveis descritas na Tabela 2.3. 2.16.2 Faixas de Tensão Permissíveis. A faixa de tensão é definida como a magnitude de flutuação em tensão que resulta da aplicação repetida e remoção da carga viva. No caso de reversão de tensão, a faixa de tensão deve ser computada como a soma numérica das tensões máximas repetidas de tração e compressão ou a soma de tensões máximas de cisalhamento de direção oposta em um dado ponto, resultando de arranjo diverso de carga viva. A faixa calculada de tensão não deve exceder o máximo computado por Fórmulas (2) através de (5), como aplicável (ver Figura 2.11 para diagrama gráfico de Fórmulas (2) através de (5) para categorias de tensão A, B, B', C, D, E, E', e F). Para categorias A, B, B', C, D, E, e E', a faixa de tensão não deve exceder como determinado pela Fórmula (2). Fórmula (2) ( ) ( ) ( ) ( ) Nas quais: = Faixa de tensão permissível, ksi [MPa] = Constante da Tabela 2.5 para todas as categorias exceto categoria F. = Número de ciclos de faixa de tensão vida de projeto. = Ciclos por dia × 365 × anos de vida de projeto. = Faixa limite de tensão de fadiga, que é a faixa máxima de tensão para vida infinita, ksi [MPa] Para categoria F de tensão, a faixa de tensão não deve exceder FSR como determinado pela Fórmula (3). Fórmula (3) ( ) ( ) ( ) ( ) Na qual: = Constante da Tabela 2.5 para Categoria F Para elementos de placa carregados por tensão em detalhes de junta de ângulo, em T e cruciforme com soldas CJP, soldas PJP, soldas de filete ou combinações do precedente, transversais à direção de tensão, a faixa máxima de tensão na seção transversal do elemento de placa carregado por tensão deve ser determinada por (a), (b), ou (c) como segue: (a) Para a seção transversal de um elemento de placa carregado por tensão, a faixa máxima de tensão na seção transversal do metal base na ponta da solda governada por consideração de início de trinca a partir da ponta da solda, a faixa de tensão não deve exceder FSR como determinado pela Fórmula (2), Categoria C, que deve ser igual a: ( ) ( ) ( ) ( ) (b) Para conexões de extremidade de elementos de placa carregados por tensão usando soldas PJP transversais, com ou sem soldas de filete de reforço ou contorno, a faixa máxima de tensão na seção transversal do metal base na ponta da solda governada por consideração de início de trinca a partir da raiz da solda não deve exceder FSR como determinado pela Fórmula (4). Fórmula (4) ( ) ( ) ( ) ( ) Na qual: = Fator de redução para juntas PJP reforçadas ou não-reforçadas. ( ⁄ ) ( ⁄ ) 1,0 (para in)
  • 46.
    AWS D1.1/D1.1M:2010 2.PROJETO DE CONEXÕES SOLDADAS 14 ( ⁄ ) ( ⁄ ) 1,0 (para mm) = o comprimento da face de raiz não soldada na direção da espessura da placa carregada por tensão = a espessura de elemento de placa carregado por tensão (in ou mm) w = o tamanho da perna do filete de reforço ou contorno, se houver, na direção da espessura das placas carregadas por tensão (in ou mm) (c) Para conexões de extremidade de elementos de placa carregados por tensão usando um par de soldas de filete, a faixa máxima de tensão na seção transversal do metal base na ponta da solda governada por consideração de início de trinca a partir da raiz da solda devido a tensão na raiz não deve exceder FSR como determinado pela Fórmula (5). Adicionalmente, a faixa de tensão de cisalhamento na garganta da solda não deve exceder FSR pela Fórmula (3) Categoria F. Fórmula (5) ( ) ( ) ( ) ( ) Na qual: = Fator de Redução para juntas usando apenas um par de soldas de filete transversais ( ⁄ ) 1,0 (para in) ( ⁄ ) 1,0 (para mm) 2.17 Detalhamento, Fabricação e Ereção 2.17.1 Transições em Espessura e Largura 2.17.1.1 Transições de Espessura em Juntas de Topo. Juntas de topo entre partes que têm espessura desigual e sujeitas a tensão de tração cíclica devem ter transições suaves entre superfícies deslocadas a uma inclinação de não mais que 1 in 2-1/2 com a superfície de qualquer das partes. A transição pode ser alcançada ao inclinar as superfícies de solda ao chanfrar a parte mais espessa, ou por uma combinação dos dois métodos (ver Figura 2.2). 2.17.1.2 Transições de Largura em Juntas de Topo. Juntas de topo entre as partes de largura desigual sujeitas a tensão cíclica em uma faixa de tensão devem ter uma transição suave entre as arestas deslocadas a uma inclinação de não mais que 1 in 2-1/2 com a aresta de qualquer das partes ou devem ser fornecidas com uma transição tendo um raio mínimo de 24 in [600 mm] tangente à parte mais estreita no centro da junta de topo (ver Figura 2.12). Uma faixa aumentada de tensão pode ser usada para aços que tenham um limite de tensão maior que 90 ksi [620 MPa] com detalhes incorporando o raio. 2.17.2 Suporte 2.17.2.1 Soldas para Anexar Reforço de Aço. Requisitos de soldas para anexar reforço de aço e a decisão sobre se o reforço deve ser removido ou mantido no lugar devem ser determinados como descrito em 2.17.2.2, 2.17.2.3, 2.17.2.4, e nas categorias de faixa de tensão da Tabela 2.5. O Engenheiro deve anotar a categoria de tensão de fadiga nos desenhos de contrato. O Empreiteiro deve anotar nos desenhos de oficina a localização requerida, o detalhe de solda a ser usado, caso a solda provisória deva ser dentro do chanfro, ou seja permitido que deva ser for a do chanfro, e caso seja permitido que o suporte deva ficar no lugar ou caso deva ser removido para fornecer a categoria de faixa de tensão pretendida. 2.17.2.2 Juntas de Ângulo e em T CJP Feitas de Um Lado. Soldas para anexar suporte podem ser dentro ou fora do chanfro em junta. O suporte para juntas sujeitas a carregamento de tensão transversal cíclica (fadiga) deve ser removido e o lado de trás da junta finalizado de forma consistente com a face da solda. Qualquer descontinui-dade inaceitável descoberta ou causada pela remoção deve ser reparada para alcançar os critérios de aceitação deste código. 2.17.2.3 Emendas de Topo CJP. Soldas para anexar suporte podem ser dentro ou for a do chanfro a menos que estejam restritas na descrição de categoria de tensão. Soldas provisórias localizadas fora do chanfro em junta não devem terminar mais próximas que 1/2 in [12 mm] da aresta da parte conectada. O suporte pode permanecer no lugar ou ser removido a menos que seja restrito na categoria de tensão usada no projeto. 2.17.2.4 Soldas em Chanfro e Juntas de Ângulo Longitudinais. Suporte de aço, se usado, deve ser continuo para todo o comprimento da junta. Soldas para anexar suporte podem ser dentro ou fora do chanfro (ver 5.10.2). 2.17.3 Solda de Contorno em Juntas de Ângulo e em T. Em juntas de ângulo e em T transversais sujeitas a tensão ou tensão devida a flexão, uma solda de filete de contorno em passe único, com tamanho não menor que 1/4 in [6 mm] deve ser adicionada a cantos reentrantes. 2.17.4 Arestas Cortadas a Chama. Arestas cortadas a chama não necessitam ser vestidas contanto que estejam conforme as provisões de rugosidade de 5.15.4.3. 2.17.5 Juntas de Topo Carregadas Transversal- mente. Para juntas de topo carregadas transversalmente, abas de solda devem ser usadas para fornecer o cascateamento da terminação de solda do lado de for a da junta acabada. Barragens de extremidade não devem ser usadas. Guias de solda devem ser removidas e a extremidade da solda finalizada a jateamento com a aresta do membro.
  • 47.
    AWS D1.1/D1.1M:2010 2.PROJETO DE CONEXÕES SOLDADAS 15 2.17.6 Terminações de Solda de Filete. Em acréscimo aos requisitos de 2.9.3.3 o seguinte aplica-se a terminações de solda sujeitas a carregamento cíclico (fadiga). Para conexões e detalhes com forças cíclicas em elementos salientes de uma frequência e magnitude que tenderia a causar falência progressiva iniciando em um ponto de tensão máxima na extremidade da solda, soldas de filete devem ser retornadas ao redor do lado ou extremidade para uma distância não menor que duas vezes o tamanho nominal da solda. 2.18 Juntas e Soldas Proibidas 2.18.1 Soldas em Chanfro de Um Lado. Soldas em chanfro, feitas de apenas um lado sem suporte ou feitas com suporte que não seja de aço, que não tenham sido qualificadas em conformidade com a Cláusula 4 devem ser proibidas exceto que essas proibições para soldas em chanfro feitas de um lado não devem aplicar-se ao seguinte: (1) Membros secundários ou que não carregam tensão. (2) Juntas de ângulo paralelas à direção da tensão calculada entre componentes de membros construídos. 2.18.2 Soldas em Chanfro em Posição Plana. Soldas de chanfro em bisel e chanfro em J em juntas de topo soldadas em posição plana devem ser proibidas quando juntas de chanfro em V ou chanfro em U são possíveis. 2.18.3 Soldas de Filete de Menos que 3/16 in [5 mm].Soldas de filete de menos que 3/16 in [5 mm] devem ser proibidas. 2.18.4 Soldas CJP em T e em Ângulo com Suporte Deixado no Lugar. Soldas CJP em T e em ângulo sujeitas a tensão transversal cíclica com a barra de suporte deixada no lugar devem ser proibidas. 2.19 Inspeção As categorias de fadiga B e C requerem que o Engenheiro certifique-se de que as soldas em chanfro CJP sujeitas a tensão transversal cíclica aplicada na faixa de tensão sejam inspecionadas usando RT ou UT. Parte D Requisitos Específicos para Projeto de Conexões Tubulares (Carregadas Estaticamente ou Ciclicamente) 2.20 Geral Os requisitos específicos da Parte D aplicam-se apenas a conexões tubulares, e devem ser usadas como os requisitos aplicáveis da Parte A. Todas as provisões da Parte D aplicam-se a aplicações estáticas e aplicações cíclicas, com exceção das provisões de fadiga de 2.21.6, que são únicos para aplicações cíclicas. 2.20.1 Excentricidade. Momentos causados por desvios significativos de conexões concêntricas devem ser fornecidos na análise e projeto [ver Figura 2.14(H) para uma ilustração de uma conexão excêntrica]. 2.21 Tensões Permissíveis 2.21.1 Tensões de Metal Base. Essas provisões podem ser usadas em conjunção com quaisquer especificações de projeto aplicáveis em qualquer dos formatos projeto de tensão permissível (allowable stress design – ASD) ou projeto de fator de resistência e carga (LRFD). A menos que as especificações de projeto aplicáveis estabeleçam de outra forma, o projeto de conexão tubular deve ser como descrito em 2.21.5, 2.21.6, e 2.25. As tensões de metal base devem ser aquelas especificadas nas especificações de projeto aplicáveis, com as seguintes limitações: 2.21.2 Limitações de Seção Circular. Limitações em diâmetro/espessura para seções circulares, e a maior taxa plana de largura/espessura para seções em caixa, além da qual ondulação local ou outros modos de falha local devem ser considerados, devem estar em conformidade com o código de projeto governante. Limites de aplicabilidade para os critérios dados em 2.25 devem ser observados como segue: (1) tubos circulares: D/t < 3300/√ [para in ksi], 478/ [para in MPa] (2) conexões de folga de seção de caixa: D/t ≤ 2 / √ [para Fy in ksi], 80/√ [para in MPa] mas não mais que 35 (3) conexões de sobreposição de seção de caixa: D/t ≤ 190/√ [para Fy in ksi], 72/√ [para in MPa] 2.21.3 Tensões de Solda. As tensões permissíveis em soldas não devem exceder aquelas dadas na Tabela 2.6, ou como permitido por 2.6.4.2 e 2.6.4.3, exceto como modificado por 2.21.5, 2.21.6, e 2.25. 2.21.4 Tensões de Fibra. Tensões de fibra devidas a flexão não devem exceder os valores descritos para tensão e compressão, a menos que os membros sejam seções compactas (capaz de desenvolver momento plástico completo) e qualquer solda transversal é proporcionada para desenvolver completamente a resistência de seções juntadas. 2.21.5 Projeto de Fator de Resistência e Carga. Fatores de resistência, Φ, dados em outro momento nesta seção, podem ser usados em contexto de cálculo de projeto de fator de resistência e carga (LRFD) no seguinte formato: ( ) ∑( ) onde ou é a carga de ruptura ou momento como dado aqui; e LF é o fator de carga como definido no código de projeto LRFD governante, por exemplo, Especificação de Projeto de Fator de Resistência e Carga para Aço Estrutural em Construções AISC.
  • 48.
    AWS D1.1/D1.1M:2010 2.PROJETO DE CONEXÕES SOLDADAS 16 2.21.6 Fadiga 2.21.6.1 Faixa de Tensão e Tipo de Membro. No projeto de membros e conexões sujeitos a repetidas variações na tensão de carga viva, deve ser dada consideração ao número de ciclos de tensão, a faixa esperada de tensão, e tipo e localização de membro ou detalhe. 2.21.6.2 Categorias de Tensão de Fadiga. O tipo e localização de material devem ser categorizados como mostrado na Tabela 2.7. 2.21.6.3 Limitação Básica de Tensão Permissível. Quando a especificação de projeto aplicável tem um requisito de fadiga, a tensão máxima não deve exceder a tensão básica permissível fornecida em outro lugar, e a faixa de tensão em um dado número de ciclos não deve exceder os valores dados na Figura 2.13. 2.21.6.4 Dano Cumulativo. Quando o ambiente de fadiga envolve faixas de tensão de magnitude variante e números variados de aplicações, o índice de dano cumulativo de fadiga, D, somado sobre todas as várias cargas, não deve exceder unidade, onde onde n = número de ciclos aplicados a uma dada faixa de tensão N =número de ciclos para os quais a faixa de tensão dada seria permitida na Figura 2.13 2.21.6.5 Membros Críticos. Para membros críticos cujo modo de falência em si seria catastrófico, D (ver 2.21.6.4) deve ser limitado a valor fracionário de 1/3. 2.21.6.6 Melhoria de Comportamento de Fadiga. Para o propósito de comportamento de fadiga melhorado, e quando especificado em documentos de contrato, as seguintes melhorias de perfil podem ser tomadas para soldas em conexões tubulares em T-, Y-, ou K: (1) Um reforço de subleito pode ser aplicado para que a superfície soldada em bruto funda-se suavemente com o metal base adjacente, e aproxime o perfil mostrado na Figura 3.10. Ranhuras no perfil não devem ser mais profundas que 0,04 in ou 1 mm, relativas a um disco que tenha diâmetro igual a ou maior que a espessura do membro de ramificação. (2) A superfície da solda pode ser retificada ao perfil mostrado na Figura 3.10. Marcas finais de retificação devem ser transversais ao eixo da solda. (3) A extremidade da solda pode ser martelada com um instrumento cego, para produzir uma deformação plástica que suavize a transição entre solda e metal base, enquanto induz uma tensão compressiva residual. Tal martelamento deve sempre ser feito após inspeção visual, e ser seguido por MT como descrito abaixo. Deve ser considerada a possibilidade de tenacidade ao entalhe localmente reduzida devido ao martelamento. Para qualificar categorias de fadiga X1 e K1, soldas representativas (todas as soldas para estruturas não re- dundantes ou onde martelamento foi aplicado) devem receber MT para descontinuidades de superfície e próxi- mas à superfície. Qualquer indicação que não possa ser resolvida por retificação leve deve ser reparada em conformidade com 5.26.1.4. 2.21.6.7 Efeitos de Tamanho e Perfil. A aplicabilidade de soldas às categorias de fadiga listadas abaixo é limitada ao seguinte tamanho de solda ou espessura de metal base: C1 2 in [50 mm] membro menos espesso na transição C2 1 in [25 mm] anexo D 1 in [25 mm] anexo E 1 in [25 mm] anexo ET 1.5 in [38 mm] ramificação F 0.7 in [18 mm] tamanho de solda FT 1 in [25 mm] tamanho de solda Para aplicações que excedem esses limites, deve-se considerar a redução a redução das tensões permissíveis ou melhorar o perfil da solda (ver Comentário). Para conexõesem T-, Y-, e K-, dois níveis de desempenho de fadiga são fornecidos na Tabela 2.8. O projetista deve designar quando o Nível I deve-se aplicar, na ausência de tal designação, e para aplicações em que fadiga não é uma consideração, o Nível II deve ser o padrão mínimo aceitável. 2.22 Identificação Membros em estruturas tubulares devem ser identificados como mostrado na Figura 2.14. 2.23 Símbolos Símbolos usados na Cláusula 2, Parte D, são como mostrados no Anexo J. 2.24 Projeto de Solda 2.24.1 Soldas de Filete 2.24.1.1 Área Efetiva. A área efetiva deve estar em conformidade com 2.4.2.10 e o seguinte: o comprimento efetivo de soldas de filete em conexões estruturais T-, Y-, e K- deve ser calculado em conformidade com 2.24.4 ou 2.24.5, usando o raio ou dimensões de face do membro de ramificação medido a partir da linha de centro da solda. 2.24.1.2 Limitação Beta para Detalhes Pré- qualificados. Detalhes para soldas de filete pré- qualificadas em conexões tubulares em T-, Y-, e K- são descritos na Figura 3.2. Esses detalhes são limitados a β ≤ /3 para conexões circulares, e β≤ ,8 para seções de caixa. Também estão sujeitos às limitações de 3.9.2. Para uma seção de caixa com raios de ângulo grandes,
  • 49.
    AWS D1.1/D1.1M:2010 2.PROJETO DE CONEXÕES SOLDADAS 17 um limite menor em β pode ser necessário para manter o membro de ramificação e a solda na face plana. 2.24.1.3 Juntas Sobrepostas. Juntas Sobrepostas de tubos telescópicos (ao contrário de uma junta deslizante de interferência como as usadas em postes afilados) nas quais a carga é transferida via solda podem ser soldadas em filete único em conformidade com a Figura 2.15. 2.24.2 Soldas em Chanfro. A área efetiva deve estar em conformidade com 2.4.1.5 e o seguinte: o comprimento efetivo de soldas em chanfro em conexões estruturais T-, Y-, e K- deve ser calculado em conformidade com 2.24.4 ou 2.24.5, usando o raio médio rm ou dimensões de face do membro de ramificação. 2.24.2.1 Detalhes de Soldas em Chanfro PJP Pré- qualificadas. Soldas em chanfro PJP pré-qualificadas em conexões tubulares em T-, Y-, ou K- devem estar em conformidade com a Figura 3.5. O Engenheiro deve usar a figura em conjunção com a Tabela 2.9 para calcular o tamanho de solda mínimo para determinar a tensão máxima de solda exceto quando tais cálculos são dispensados por 2.25.1.3(2). A dimensão de perda Z deve ser deduzida da distância do ponto de trabalho à face teórica da solda para descobrir o tamanho de solda mínimo. 2.24.2.2 Detalhes de Soldas em Chanfro CJP Pré- qualificadas Soldadas a partir de Um Lado sem Suporte nas Conexões em T-, Y-, e K-. Ver 3.13.5 para as opções de detalhe. Se for necessária melhoria no comportamento de fadiga, os detalhes selecionados devem ser baseados nos requisitos de perfil de 2.21.6.6 e Tabela 2.8. 2.24.3 Tensões em Soldas. Quando cálculos de tensão permissível da solda são necessários para seções circulares, a tensão nominal na solda que liga ramificação a corda em uma conexão T-, Y-, ou K- simples deve ser computado como: [ ( ) ( ) ] onde = espessura de membro de ramificação = garganta efetiva da solda e =Tensões nominais de flexão e axial na ramificação Para e ver Figura 2.16. e são comprimento efetivo e fatores de seção dados em 2.24.4 e 2.24.5. Em formato de resistência de ruptura ou LRFD, a seguinte expressão para capacidade de carga axial da ramificação P deve aplicar-se tanto para seções circulares como para seções de caixa: onde = capacidade de carga da linha de solda (kips/polegada) e Leff = comprimento efetivo de solda. Para soldas de filete, com Φ ,8 onde = resistência de tensão mínima classificada para depósito de solda. 2.24.4 Comprimentos de Conexão Circular. Comprimento de soldas e comprimento da interseção em conexõesem T-, Y-, e K- deve ser determinado como 2πr onde r é o raio efetivo da interseção (ver 2.24.2, 2.24.1.1, e 2.25.1.3(4)). √( ) onde o ângulo agudo entre os eixos dos dois membros β razão diâmetro, ramificação/principal, como definido previamente OBSERVAÇÃO: O seguinte pode ser usado como aproximações conservadoras: para carga axial para flexão no plano para flexão fora do plano 2.24.5 Comprimentos de Conexões de Caixa 2.24.5.1 Conexões K- e N-. O comprimento efetivo de soldas de ramificação em conexões estruturais, planares, K- e N- de folga entre seções de caixa, sujeito a carga axial predominantemente estática, deve ser tomado como: , para ≤ 5 ° , para ≥ 6 ° Portanto, para ≤ 5 ° o calcanhar, extremidade e lados da ramificação podem ser considerados completamente efetivos. Para ≥ 6 °, o calcanhar é considerado não- efetivo devido à distribuição desigual de carga. Para 50° < < 6 °, interpolar. 2.24.5.2 Conexões em T-, Y-, e X-. O comprimento efetivo de soldas de ramificação em conexões estruturais, planares, T-, Y-, e X- entre seções de caixa, sujeito a carga axial predominantemente estática, deve ser tomado como: , para ≤ 5 ° , para ≥ 6 ° Para 5 ° < < 6 °, interpolar. 2.25 Limitações de Resistência de Conexões Soldadas 2.25.1 Conexões Circulares T-, Y-, e K- (ver 2.27.1.1) 2.25.1.1 Falha Local. Quando uma conexão T-, Y-, ou K- é feita ao simplesmente soldar o(s) membro(s) de
  • 50.
    AWS D1.1/D1.1M:2010 2.PROJETO DE CONEXÕES SOLDADAS 18 ramificação individualmente ao membro principal, tensões locais em superfície de falha potencial através da parede do membro principal podem limitar a resistência utilizável da junta soldada. A tensão de cisalhamento na qual tal falha ocorre depende não apenas da resistência do aço do membro principal, mas também da geometria da conexão. Tais conexões devem ser proporcionadas com base em (1) puncionamentopuncionamento, ou (2) cálculos de carga de ruptura como dado abaixo. O puncionamentopuncionamento é um critério de projeto de tensão permissível (ASD) e inclui o fator de segurança. O formato de carga de ruptura pode ser usado no projeto de fator de resistência e carga (LRFD), com o fator de resistência Φ a ser incluído pelo projetista, ver 2.21.5. (1) Formato PuncionamentoPuncionamento. A tensão de puncionamentopuncionamento atuante na superfície de falha potencial (ver Figura 2.17) não deve exceder a tensão de puncionamentopuncionamento permissível. A tensão de puncionamentopuncionamento atuante é dada por A tensão de puncionamentopuncionamento permissível é dada por ( ) O permissível também deve ser limitado por tensão de cisalhamento permissível especificada na especificação de projeto aplicável (por exemplo, 0,4 ). Termos usados nas equações antecedentes são definidos como segue: τ, , γ, β e outros parâmetros de geometria de conexão estão definidos na Figura 2.14(M). é a tensão nominal axial ( ) ou de flexão ( ) no membro de ramificação (o puncionamentopuncionamento para cada uma é mantido separadamente) = O limite de escoamento mínimo especificado da corda do membro principal, mas não mais que 2/3 da resistência de tensão. são termos modificador de geometria e de interação de tensão, respectivamente, dados na Tabela 2.10. Para flexão sobre dois eixos (por exemplo, y e z), a tensão de flexão efetiva resultante em seções de caixa circulares e quadradas pode ser tomada como √ Para tensões axial e de flexão combinadas, a seguinte fórmula deve ser satisfeita: [ ] [ ] (2) Formato LRFD (cargas fatoradas até a condição de ruptura—ver 2.20.5) Cargas de membros de ramificação nas quais a falha da parede de corda plástica no membro principal ocorre são dadas por: [ ] momento de flexão: [ ] Com o fator de resistência Φ ,8. deve ser computado com redefinido como ( ) ( ) e onde e são momento e carga de corda fatorados, A é área, S é modulo de seção. Essas cargas também estão sujeitas aos limites de resistência de cisalhamento de material de corda de: √ √ com Φ , 5 onde = espessura da parede de corda = diâmetro do membro de ramificação e outros termos são definidos como 2.24.1.1(1). O estado limite para combinações de carga axial P e momento de flexão M é dado por: ( ) ≤ , 2.25.1.2 Colapso Geral. A resistência e estabilidade de um membro principal em uma conexão tubular, com qualquer reforço, devem ser investigadas usando tecnologia disponível em conformidade com o código de projeto aplicável. O colapso geral é particularmente severo em conexões transversais e conexões sujeitas a cargas de esmagamento [ver Figura 2.14(G) e (J)]. Tais conexões podem ser reforçadas ao aumentar a espessura do membro principal, ou pelo uso de diafragmas, anéis, ou colares. (1) Para conexões transversais circulares não reforçadas, a carga de corda transversal permissível, devido à carga de compressão axial do membro de ramificação P, não deve exceder ( ) (2) Para conexões transversais circulares reforçadas por um “metal de junta” tendo espessura e comprimento, L,aumentados, a carga axial permissível de ramificação, P, pode ser empregada como ( ) + [ ( ) ( )] para L < 2,5/D P = ( ) para L ≥ 2,5/D onde ( ) é obtido ao usar a espessura nominal do membro principal na equação em (1); e P(2) é obtido ao usar a espessura do metal de junta na mesma equação.
  • 51.
    AWS D1.1/D1.1M:2010 2.PROJETO DE CONEXÕES SOLDADAS 19 O estado limite final pode ser tomado como 1,8 vezes a ASD permissível antecedente, com Φ ,8. (3) Para conexões circulares K- nas quais a espessura do membro principal requerido a conformar- se com as provisões de cisalhamento locais de 2.25.1.1 estende-se pelo menos D/4 além das soldas de conexão do membro de ramificação, colapso geral não precisa ser verificado. 2.25.1.3 Distribuição Desigual de Carga (Dimensionamento de Solda) (1) Devido às diferenças nas flexibilidades relativas do membro principal carregado de forma normal para sua superfície, e no membro de ramificação carregando tensões de membrana paralelas a sua superfície, a transferência de carga através da solda é altamente não uniforme, e uma cessão local pode ser esperada antes que a conexão alcance sua carga de projeto. Para prevenir “descompactação” ou falha progressiva da solda e assegurar comportamento dúctil da junta, as soldas mínimas fornecidas em conexões em T-, Y-, ou K-simples devem ser capazes de desenvolver, em sua resistência de ruptura final, o menor limite de escoamento ou resistência local (puncionamentopuncionamento) do membro de cinta do membro principal. A resistência de ruptura final de soldas de filete e soldas em chanfro PJP deve ser computada em 2,67 vezes a tensão básica permissível para 60 ksi [415 MPa] ou 70 ksi [485 MPa] resistência de tração e em 2,2 vezes a tensão básica permissível para níveis mais altos de tensão. O puncionamentopuncionamento final deve ser tomado como 1,8 vezes o permissível de 2.25.1.1. (2) Este requerimento pode ser presumivelmente preenchido pelos detalhes pré-qualificados de junta das Figuras 3.8 (CJP) e 3.12.4 (PJP), quando materiais correspondentes (Tabela 3.1) são usados. (3) Resistência compatível de soldas pode também ser presumida com os detalhes pré-qualificados de solda de filete da Figura 3.2, quando os seguintes requisitos de garganta de solda são preenchidos: (a) E = 0,7 para projeto de tensão elástica de trabalho de tubos de aço circulares de aço macio ( ≤ 40 ksi [280 MPa] juntados com soldas de correspondência superada (resistência classificada = 70 ksi [485 MPa]) (b) E = 1,0 tb para projeto de resistência (LRFD) final de conexões de tubo circulares ou de caixa de aço moderado, ≤ 4 ksi 28 MPa , com soldas satisfa- zendo os requisitos de resistência correspondente da Tabela 3.1. (c) E = menor de ou 1.07 para todos os outros casos (4) Soldas de filete menores que aquelas requeridas na Figura 3.2 para corresponder à resistência da conexão, mas dimensionadas apenas para resistir a cargas de projeto, devem pelo menos ser dimensionadas para os seguintes múltiplos de tensão calculados por 2.24.3, para considerar distribuição de carga não uniforme: ASD LRFD E60XX e E70XX— 1,35 1,5 Resistências mais altas— 1,60 1,8 2.25.1.4 Transições. Conexões curvadas e transições de tamanho de tubo que não sejam excetuadas abaixo devem ser verificadas à procura de tensões locais causadas pela mudança de direção na transição (ver Observação d da Tabela 2.7). Exceção, para cargas estáticas: Tubos circulares tendo D/t menor que 30, e Inclinação de transição menor que 1:4. 2.25.1.5 Outras Configurações e Cargas ( ) O termo “conexões em T-, Y-, e K-” é frequentemente usado de forma genérica para descrever conexões tubulares nas quais os membros de ramificação são soldados a um membro principal, ou corda, em um nó estrutural. Critérios específicos também são dados para conexões transversais (X-) (também conhecidas como duplo T) em 2.25.1.1 e 2.25.1.2. Conexões N- são um caso especial de conexões K- nas quais uma das ramificações é perpendicular à corda; os mesmos critérios aplicam-se (ver Comentário sobre conexões multiplanares). (2) Classificações de conexão como em T-, Y-, K-, ou transversal deveriam aplicar-se a membros de ramificação individuais de acordo com o padrão de carga para cada caso de carga. Para ser considerada uma conexão K-, a carga de perfuração em um membro de ramificação deveria ser essencialmente equilibrada por cargas em outras cintas no mesmo plano no mesmo lado da junta. Em conexões em T- e Y-, a carga de perfuração é reagida como viga ao cisalhamento na corda. Em conexões transversais a carga de perfuração é carregada através da corda para cintas no lado oposto. Para membros de ramificação que carregam parte de sua carga como conexões em K-, e parte como conexões em T-, Y-, ou transversais, interpolar baseado na porção de cada no total, ou usar alfa computado (ver Comentário). (3) Para conexões multiplanares, o alfa computado como dado no Anexo T pode ser usado para estimar o efeito benéfico ou prejudicial de várias cargas de membros de ramificação na ovalização do membro principal. No entanto, para conexões similarmente carregadas em planos adjacentes, por exemplo, conexões pareadas TT e KK em estruturas delta, nenhum aumento na capacidade além daquela das conexões uniplanares correspondentes deve ser realizado. 2.25.1.6 Conexões de Sobreposição. Juntas de sobreposição, nas quais parte da carga é transferida diretamente de um membro de ramificação para outro através de sua solda comum, devem incluir as seguintes verificações: (1) O componente de carga permissível do membro individual, P⊥ perpendicular ao eixo do membro principal deve ser tomado como P⊥ = ( ) +
  • 52.
    AWS D1.1/D1.1M:2010 2.PROJETO DE CONEXÕES SOLDADAS 20 ( ) onde é o puncionamentopuncionamento permissível como definido em 2.25.1.1, e = a espessura do membro principal = comprimento real de solda para aquela porção do membro de ramificação que fica em contato com o membro principal = puncionamentopuncionamento permissível para o membro principal como conexão K- (α , ) = tensão de cisalhamento permissível para a solda entre membros de ramificação (Tabela 2.6) = o menor tamanho de solda (garganta efetiva) ou a espessura tb do membro de ramificação mais fino = o comprimento projetado de corda (um lado) da solda de sobreposição, medido perpendicularmente ao membro principal. Esses termos são ilustrados na Figura 2.18. O estado limite final pode ser tomado como 1,8 vezes a ASD permissível antecedente, com Φ ,8. (2) O componente de carga combinada permissível paralelo ao eixo do membro principal não deve exceder , onde é a soma dos comprimentos reais de solda para todas as cintas em contato com o membro principal. (3) A sobreposição deve ser preferencialmente proporcionada para pelo menos 50% do P⊥ atuante. A espessura da parede do membro de ramificação nunca deve exceder a espessura da parede do membro principal. (4) Quando o membro de ramificação carrega cargas substancialmente diferentes, ou um membro de ramificação tem uma espessura de parede maior que a de outro, ou ambos, o membro de ramificação mais grosso ou mais carregado deve preferencialmente ser o membro conectado com sua circunferência completa soldada ao membro principal. (5) A carga transversal líquida da área de cobertura combinada deve satisfazer 2.25.1.1 e 2.25.1.2. (6) Tamanho mínimo de solda para soldas de filete devem fornecer garganta efetiva de 1,0 para < 40 ksi [280 MPa], 1,2 tb para Fy > 40 ksi [280 MPa]. 2.25.2 Conexões de Caixa T-, Y, e K- (ver 2.27.1.1). Os critérios dados nessa seção são todos em formato de carga de ruptura, com o fator de segurança removido. Fatores de resistência para LRFD são dados completamente. Para ASD, a capacidade permissível deve ser a capacidade de ruptura, dividida por um fator de segurança de 1,44/Φ. A escolha de cargas e fatores de carga deve estar em conformidade com a especificação de projeto vigente; ver 2.6.5 e 2.21.5. As conexões devem ser verificadas para cada um dos modos de falha descritos abaixo. Esses critérios são para conexões entre seções de caixa de espessura de parede uniforme, em estruturas planares em que as cargas dos membros de ramificação são primariamente axiais. Se seções compactas, material dúctil, e soldas de resistência compatível são usados, a flexão secundária do membro de ramificação pode ser omitida. (Flexão secundária é aquela devida a deformação ou rotação da junta em estruturas inteiramente trianguladas. Flexão do membro de ramificação devido a cargas aplicadas, laterais de molduras sem cinta, etc., não podem ser omitidos e devem ser considerados no projeto (ver 2.25.2.5). Os critérios nessa seção estão sujeitos às limitações mostradas na Figura 2.19. 2.25.2.1 Falha Local. Carga axial do membro de ramificação Pu na qual a ocorrência de falha plástica na parede da corda no membro principal é dada por: [ √ ] para conexões transversais, em T- e Y- com ,25 ≤ β < ,85 e Φ , . Também, √ com Φ , para conexões de folga K- e N- com menos ≥ , + e g/D ζ ≥ ,5 ( –β) onde é o limite de escoamento mínimo especificado do membro principal, é espessura de parede de corda, γ é D/2 (D largura da face da corda); β, η, , e ζ são parâmetros de topologia de conexão como definido na Figura 2.14 (M) e Figura C-2.26; ( é β equivalente definido abaixo); e =1,3– .4U/β ( ≤ , ); use = 1,0 (para corda em tensão) com U sendo a razão de utilização da corda. | | | | ( ) Essas cargas também estão sujeitas aos limites de resistência de cisalhamento de material de corda de ( √ ) para conexões transversais, em T- ou Y- com β > .85, usando Φ , 5, e ( √ ) Para conexões de folga em K- e N- com β ≥ , + γ/5 , usando Φ , 5 (essa verificação é desnecessária se os membros de ramificação são quadrados e de espessura igual), onde β para conexões em K- e N- com ζ ≤ ,5 ( –β) = para todas as outras conexões (puncionamento externo efetivo) 5β/γ
  • 53.
    AWS D1.1/D1.1M:2010 2.PROJETO DE CONEXÕES SOLDADAS 21 Mas não mais que β 2.25.2.2 Colapso Geral. Resistência e estabilidade de um membro principal em uma conexão tubular, com qualquer reforço, devem ser investigadas usando tecnologia disponível em conformidade com o código de projeto aplicável. (1) O colapso geral é particularmente severo em conexões transversais e conexões sujeitas a cargas de esmagamento. Tais conexões podem ser reforçadas ao aumentar a espessura do membro principal ou pelo uso de diafragmas, cantoneiras, ou colares. Para conexões de caixa correspondentes não reforçadas, a carga final para o membro principal (corda) devido a carga axial de ramificação P deve ser limitada a: ( ) com Φ , para cargas de tensão, e Φ ,8 para compressão. e √ ( ) com Φ ,8 para conexões transversais, reações pós extremidade, etc., em compressão, e E = módulos de elasticidade ou √ ( ) com Φ ,75 para todas as outras cargas de compressão de ramificação (2) Para conexões de folga em K- e N-, a adequação da viga ao cisalhamento do membro principal para carregar cargas transversais através da região de folga deve ser verificada incluindo interação com forças de corda axial. Essa verificação não é necessária para U ≤ 0,44 in conexões de caixa escalonadas tendo β + η ≤ H/D (H é altura do membro principal no plano de estrutura). 2.25.2.3 Distribuição Desigual de Carga (Largura Efetiva). Devido a diferenças nas flexibilidades relativas do membro principal carregado de forma normal para sua superfície e no membro de ramificação carregando tensões de membrana paralelas a sua superfície, a transferência de carga através da solda é altamente não uniforme, e cessão local pode ser esperada antes que a conexão alcance sua carga de projeto. Para prevenir falha progressiva e garantir comportamento dúctil da junta, tanto os membros de ramificação como a solda devem ser verificados como segue: (1) Verificação do Membro de Ramificação. A capacidade axial de largura efetiva Pu do membro de ramificação deve ser verificada para todas as conexões de folga em K- e N-, e outras conexões tendo β > ,85. (Observe que essa verificação é desnecessária se os membros de ramificação são quadrados e de largura igual.) [ ] com Φ = 0,95 onde = limite de escoamentolimite de escoamento mínimo especificado da ramificação = espessura da parede de ramificação a, b = dimensões de ramificação [ver Figura 2.14(B)] = b para conexões em K- e N- com ζ ≤ ,5 (1–β) = para todas as outras conexões ( ) OBSERVAÇÃO: τ ≤ , e ≤ são presumidos. (2) Verificações de Solda. As soldas mínimas fornecidas em conexões em T-, Y-, ou K- simples devem ser capazes de desenvolver, em sua resistência de ruptura final, o menor limite de escoamentolimite de escoamento ou resistência local no membro de ramificação do membro principal. Esse requerimento pode ser presumivelmente preenchido pelos detalhes pré-qualificados de junta da Figura 3.6 (CJP e PJP), quando materiais correspondentes (Tabela 3.1) são usados, (3) Soldas de filete devem ser verificadas como descrito em 2.24.5. 2.25.2.4 Conexões de Sobreposição. Juntas sobrepostas reduzem os problemas de projeto no membro principal ao transferir a maior parte da carga transversal diretamente de um membro de ramificação para outro (ver Figura 2.20). Os critérios dessa seção são aplicáveis a conexões esteticamente carregadas que atendam às seguintes limitações: (1) A ramificação maior, mais espessa é o membro conectado. (2) β ≥ ,25. (3) O membro de ramificação de sobreposição é 0,75 a 1,0 vez o tamanho do membro conectado com pelo menos 25% de suas faces de lado em sobreposição com o membro conectado. (4) Ambos os membros de ramificação têm o mesmo limite de escoamentolimite de escoamento. (5) Todos os membros de ramificação e de corda são tubos de caixa compactos com largura/espessura de ≤ 35 para ramificações, e ≤ 4 para corda. As seguintes verificações devem ser feitas: (1) Capacidade axial Pu do tubo de sobreposição, usando
  • 54.
    AWS D1.1/D1.1M:2010 2.PROJETO DE CONEXÕES SOLDADAS 22 Φ 0,95 com ( ) para 25% a 50% de sobreposição, com ( ) para 50% a 80% de sobreposição. ( ) para 80% a 100% de sobreposição. ( ) Para mais do que 100% de sobreposição onde beo é largura efetiva para a face soldada à corda, ( ) ( ) e é a largura efetiva para a face soldada à cinta conectada. ( ) da cinta conectada E outros termos são como definido previamente. (2) Carga transversal líquida na área de cobertura combinada, tratada como conexão T- ou Y-. (3) Para mais de 100% de sobreposição, cisalhamento longitudinal deve ser verificado, considerando apenas as paredes laterais da área de cobertura do membro conectado para ser efetivo. 2.25.2.5 Flexão. Momento primário de flexão, M, devido a carga aplicada, vigas cantiléver, laterais de molduras sem cinta, etc., devem ser considerados no projeto como uma carga axial adicional, P: No lugar de uma análise mais racional (ver Comentário), JD pode ser tomado como η D/4 para flexão em plano, e como βD/4 para flexão fora do plano. Os efeitos de carga axial, flexão no plano e flexão fora do plano devem ser considerados como aditivos. Os momentos devem ser tomados na área de cobertura do membro de ramificação. 2.25.2.6 Outras Configurações. Conexões transversais em T-, Y-, de folga em K-, e de folga em N- com tubos de ramificação circulares emoldurados em uma seção de caixa de membro principal podem ser designados usando 78,5% da capacidade dada em 2.25.2.1 e 2.25.2.2, ao substituir a dimensão de caixa “a” e “b” em cada equação por diâmetro de ramificação, db (limitado a seções compactas com 0,4 ≤ β ≤ 0,8). 2.26 Transição de Espessura Juntas de topo de tensão em membros primários de espessura de material ou tamanho diferentes alinhados axialmente carregados ciclicamente devem ser feitas de tal maneira que a inclinação através da zona de transição não exceda 1 in 2-1/2. A transição deve ser alcançada pelo chanframento da parte mais grossa, inclinando o metal de solda, ou por qualquer combinação desses métodos (ver Figura 2.21). 2.27 Limitações de Material Conexões tubulares são sujeitas a concentrações de tensão locais que podem levar a cessão local e deformações plásticas na carga de projeto. Durante a vida útil, cargas cíclicas podem iniciar trincas de fadiga, fazendo demandas adicionais na ductilidade do aço, particularmente sob cargas dinâmicas. Essas demandas são particularmente severas em metais de juntas de paredes pesadas projetados para puncionamento (ver Comentário C-2.27.2.2). 2.27.1 Limitações 2.27.1.1 Limite de escoamento. As provisões de projeto de 2.24 para conexões tubulares soldadas não são intencionadas para uso com tubos circulares tendo um limite mínimo específico, , de mais de 60 ksi [415 MPa] ou para seções de caixa mais de 52 ksi [360 MPa]. 2.27.1.2 Limite Reduzido Efetivo. O limite reduzido efetivo deve ser usado como Fyo no projeto de conexões tubulares com limites de , como segue: (1) 2/3 da resistência a tração mínima especificada para seções circulares (ver Observações na Tabela 2.10). (2) 4/5 da resistência de tração mínima especificada para seções retangulares (ver Figura 2.19). 2.27.1.3 Conexões de Caixa em T-, Y-, e K-. O projetista deveria considerar demandas especiais que são colocadas no aço usado em conexões de caixa em T-, Y- , e K-. 2.27.1.4 Precaução ASTM A 500. Produtos manufaturados de acordo com essa especificação podem não ser adequadas a essas aplicações tais como elementos dinamicamente carregados em estruturas soldadas, etc., onde propriedades de tenacidade ao entalhe de baixa temperatura podem ser importantes. Investigação especial ou tratamento térmico podem ser necessários se este produto for aplicado a conexões tubulares em T-,Y-, e K-. 2.27.2 Resistência ao Entalhe de Metal Base Tubular 2.27.2.1 Requisitos de Teste CVN. Membros tubulares soldados em tensão devem ser requisitados a demonstrar energia absorvida em teste CVN de 20 pés⋅libras a 70°F [27 J a 20°C] para as seguintes condições:
  • 55.
    AWS D1.1/D1.1M:2010 2.PROJETO DE CONEXÕES SOLDADAS 23 (1) Espessura de metal base de 2 in [50 mm] ou maior com um limite de escoamento mínimo especificado de 40 ksi [280 MPa] ou maior.] O teste CVN deve estar em conformidade com ASTM A 673 (Frequência H, lote de aquecimento). Para os propósitos desta subcláusulas, um membro de tensão é definido como um que tenha mais que 10 ksi [70 MPa] de tensão de tração devido a cargas de projeto. 2.27.2.2 Requisitos LAST. Tubulares usados como membro principal em nós estruturais, cujo projeto é governado por cargas cíclicas ou de fadiga (por exemplo, o metal de junta em conexões em T-, Y-, e K-) devem ser requisitados a demonstrar no teste CVN energia absorvida de 20 pés⋅libra [27 J] na Menor Temperatura de Serviço Antecipada (Lowest Anticipated Service Temperature - LAST) para as seguintes condições: (1) Espessura do metal base de 2 in [50 mm] ou maior. (2) Espessura de metal base de 1 in [25 mm] ou maior com um limite de escoamento especificado de 50 ksi [345 MPa] ou maior. Quando o LAST não é especificado, ou a estrutura não é governada por carga cíclica ou de fadiga, o teste deve ser a temperatura não maior que 40°F [4°C]. O teste CVN deve normalmente representar os tubulares como fornecidos, e ser testado em conformidade com ASTM A 673 Frequência H (lote de aquecimento). 2.27.2.3 Tenacidade ao Entalhe Alternativa. Requisitos de tenacidade ao entalhe alternativa devem aplicar-se quando especificados em documentos de contrato. O Comentário dá diretrizes adicionais para projetistas. A tenacidade deve ser considerada em relação à redundância versus gravidade de estrutura em um estágio inicial de planejamento e projeto.
  • 56.
    AWS D1.1/D1.1M:2010 2.PROJETO DE CONEXÕES SOLDADAS Tabela 2.1 Tamanho Efetivo da Solda em Chanfro Curvado com Preenchimento por Jateamento (ver 2.4.1.4) Processo de Soldagem Chanfro Bisel Curvado Chanfro em V Curvado SMAW e FCAW-S GMAWª e FCAW-G SAW 5/16 R 5/8 R 5/16 R 5/8 R 3/4 R 1/2 R a Exceto GMAW-S Observação: R = raio da superfície externa. Tabela 2.2 Dimensão de Perda Z (Não-tubular) (ver 2.4.3.3) Posição de Soldagem - V ou OH Posição de Soldagem - H ou F Ângulo Diedro ψ Processo Z (in) Z (mm) Processo Z (in) Z (mm) 6 >ψ ≤ 45 SMAW FCAW-S FCAW-G GMAW 1/8 1/8 1/8 N/A 3 3 3 N/A SMAW FCAW-S FCAW-G GMAW 1/8 0 0 0 3 0 0 0 45 >ψ ≤ 30 SMAW FCAW-S FCAW-G GMAW 1/4 1/4 3/8 N/A 6 6 10 N/A SMAW FCAW-S FCAW-G GMAW 1/4 1/8 1/4 1/4 6 3 6 6
  • 57.
    AWS D1.1/D1.1M:2010 2.PROJETO DE CONEXÕES SOLDADAS Tabela 2.3 Tensões Permissíveis (ver 2.6.4 e 2.16.1) Tipo de Tensão Aplicada Tensão Permissível Nível de Resistência Requerido do Metal de Adição Soldas em Chanfro CJP Tensão normal sobre a área efetivaa Mesma que metal base Metal de adição correspondente deve ser usado b Compressão normal sobre a área efetiva Mesma que metal base Metal de adição com nível de resistência igual ou uma classificação (10ksi [70MPa]) menor que o metal de adição correspondente deve ser usado. Tensão ou compressão paralela ao eixo da soldac Não é uma consideração de projeto de junta soldada. Metal de adição com nível de resistência igual ou menor que o metal de adição correspondente deve ser usado. Cisalhamento na área 0,30 × classificação de resistência de tensão de metal de adição, exceto cisalhamento no metal base, não deve exceder 0,40 × limite de escoamento do metalbase Soldas em Chanfro PJP Tensão normal para a área efetiva 0,30 × classificação de resistência de tensão de metal de adição Metal de adição com nível de resistência igual ou menor que o metal de adição correspondente deve ser usado. Compressão normal à área efetiva da solda em juntas projetadas para suportar 0,90 × classificação de resistência de tensão de metal de adição, mas não mais que 0,90 × limite de escoamento do metal base conectado Compressão normal à área efetiva da solda em juntas não projetadas para suportar 0,75 × classificação de resistência de tensão de metal de adição Tensão ou compressão paralela ao eixo da soldac Não é uma consideração de projeto de junta soldada Cisalhamento paralelo ao eixo da área efetiva 0,30 × classificação de resistência de tensão de metal de adição exceto cisalhamento no metal base não deve exceder 0,40 × limite de escoamento do metal base Soldas de Filete Cisalhamento na área efetiva ou solda 0,30 × classificação de resistência de tensão de metal de adição exceto que a tensão da área de cisalhamento na seção líquida do metal base não deve exceder 0,40 × limite de escoamento do metal based,e Metal de adição com nível de resistência igual ou menor que o metal de adição correspondente deve ser usado. Tensão ou compressão paralela ao eixo da soldac Não é uma consideração de projeto de junta soldada Soldas de Tampão Cisalhamento paralelo á superfície de contato na área efetivaf 0,30 × classificação de resistência de tensão de metal de adição Metal de adição com nível de resistência igual ou menor que o metal de adição correspondente deve ser usado. a Para definições de áreas efetivas, ver 2.4. b Para metal de adição correspondente a resistência de metal base para aços aprovados em código, ver Tabela 3.1 e Tabela 4.9. c Componentes de juntas de soldas de filete e soldas em chanfro de membros construídos podem ser projetadas sem consideração à tensão e tensão de compressão nos componentes conectados paralelos ao eixo da solda embora a área da solda normal para o eixo da solda podem ser incluídas na área de seção transversal do membro. d A limitação em tensão no metal base metal a 0,40 × limite de escoamento do metal base não se aplica a tensão em perna de solda diagramática; no entanto, uma verificação deve ser feita para assegurar que a resistência da conexão não é limitada pela espessura do metal base na área líquida ao redor da conexão, particularmente no caso de um par de soldas de filete em lados opostos de um elemento de placa. e De forma alternada, ver 2.6.4.2, 2.6.4.3, e 2.6.4.4. A Observação d (acima) aplica-se. f A resistência da conexão também deve ser limitada pela capacidade de carga de ruptura do metal base mais fino na área de perímetro ao redor da conexão.
  • 58.
    AWS D1.1/D1.1M:2010 2.PROJETO DE CONEXÕES SOLDADAS Tabela 2.4 Coeficientes de Resistência Equivalente para Soldas de Filete Carregadas Obliquamente (ver 2.6.4.4) Ângulo de Carga para o Elemento Sendo Analisado Ângulo de Carga para Elemento de Solda com a Capacidade de Deformação Mais Baixa Θ C(90) C(75) C(60) C(45) C(30) C(15) C(0) 0 0,825 0,849 0,876 0,909 0,948 0,948 1 15 1,02 1,04 1,05 1,07 1,06 0,883 30 1,16 1,17 1,18 1,17 1,10 45 1,29 1,30 1,29 1,26 60 1,40 1,40 1,39 75 1,48 1,47 90 1,50 Observação: o elemento de solda com capacidade de deformação mais baixa será o elemento com o maior ângulo de carga. Interpolação linear entre ângulos de carga adjacentes é permitida.
  • 59.
    AWS D1.1/D1.1M:2010 2.PROJETO DE CONEXÕES SOLDADAS 140 Tabela 2.7 Categorias de Tensão para Tipo e Local de Material para Seções Circulares (ver 2.21.6.2) Categoria de Stress Situação Tipos de Tensãoa A Tubo simples não soldado TCBR B Tubo com costura longitudinal TCBR B Emendas de topo, soldas em chanfro CJP, retificadas ao nível e inspecionadas por RT ou UT (Classe R) TCBR B Membros com reforços longitudinais continuamente soldados TCBR C1 Emendas de topo, soldas em chanfro CJP, soldagem em bruto TCBR C2 Membros com reforços transversais (anel) TCBR D Membros com vários anexos como grampos, suportes, etc. TCBR D Juntas cruciformes e em T com soldas CJP (exceto em conexões tubulares) TCBR DT Conexões projetadas como conexões T-, Y-, ou K-simples, com soldas em chanfro CJP em conformidade com as Figuras 3.8– 3.10 (inclusive conexões sobrepostas nas quais o membro principal em cada intersecção está de acordo com os requisitos de puncionamentopuncionamento) (ver Observação b) TCBR em membro de ramificação (Observação: O membro principal precisa ser verificado separadamente por categoria K1 ou K2 ) E Juntas cruciformes e em T- equilibradas com soldas em chanfro PJP ou soldas de filete (exceto em conexões tubulares) TCBR em membro; a solda também precisa ser verificada por categoria F E Membros em que invólucro dobrador, placas de cobertura, reforços longitudinais, chapas escamadas, etc., terminam (exceto em conexões tubulares) TCBR em membro; a solda também precisa ser verificada por categoria F ET Conexões T-, Y-, e K- simples com soldas em chanfro PJP ou soldas de filete; também, conexões tubulares complexas nas quais a capacidade de puncionamentopuncionamento do membro principal não pode carregar a carga inteira e a Transferência de carga é alcançada por sobreposição (excentricidade negativa), chapas escamadas, anéis de reforço, etc. (ver Observação b) TCBR em membro de ramificação (Observação: O membro principal em conexões T-, Y-, ou K- simples precisam ser verificados separadamente por categoria K1 ou K2 ; a solta também precisa ser verificada por categoria FT e 2.25.1) F Solda de extremidade de placa de cobertura ou invólucro dobrador; soldas em chapas escamadas, reforços, etc. Cisalhamento em solda F Juntas cruciformes e em T-, carregadas em tensão ou flexão, tendo soldas de filete ou em chanfro PJP (exceto em conexões tubulares) Cisalhamento em solda (a despeito da direção do carregamento) (ver 2.24) FT Conexões T-, Y-, ou K- simples carregadas em tensão ou flexão, tendo soldas de filete ou em chanfro PJP Cisalhamento em solda (a despeito da direção do carregamento) X2 Membros de intersecção em conexões T-, Y-, e K-simples; qualquer conexão cuja adequação é determinada ao testar um modelo precisamente escalonado ou por análise teórica (por Maior faixa total de tensão ou deformação na superfície externa de membros de intersecção na extremidade da solda que os junta—medida após
  • 60.
    AWS D1.1/D1.1M:2010 2.PROJETO DE CONEXÕES SOLDADAS exemplo, elemento finito) teste em conexão modelo ou protótipo ou calculada com a melhor teoria disponível (Continua) Tabela 2.7 (Continuação) Categorias de Tensão para Tipo e Local de Material para Seções Circulares (ver 2.21.6.2) Categoria de Stress Situação Tipos de Tensãoa X1 Como para X2 , perfil aperfeiçoado por 2.21.6.6 e 2.21.6.7 Como para X2 X1 Intersecção cone-cilindro não reforçada Tensão de ponto de aquecimento em mudança de ângulo; calcular por Observação d K2 Conexões T-, Y-, e K- simples nas quais a razão gama R/tc do membro principal não excede 24 (ver Observação c). PuncionamentoPuncionamento para membros principais; calculado por Observação e K1 Como para K2 , perfil aperfeiçoado por 2.21.6.6 e 2.21.6. a T = tensão, C = compressão, B = flexão, R = reversão—isto é, faixa total de tensão axial nominal e de flexão. b Curvas empíricas (Figura 2.13) baseadas em geometrias de conexão “típicas”; se fatores reais de concentração de tensão ou deformações de ponto de aquecimento são conhecidos, o uso da curva X1 ou X2 é preferencial. c Curvas empíricas (Figura 2.13) baseadas em testes com gama (R/tc ) de 18 a 24; curvas do lado seguro para membros de corda muito pesados (baixo R /tc ); para membros de corda (R /tc maior que 24) reduz a tensão permissível em proporção a ( ) Quando fatores reais de concentração de tensão ou deformações de ponto de aquecimento são conhecidos, o uso da curva X1 ou X2 é preferencial d Fator de concentração de tensão – √ onde = mudança de ângulo na transição = raio para razão de espessura do tubo na transição e A faixa cíclica de puncionamentopuncionamento é dada por [ √( ) ( ) ] Onde τ e são definidos na Figura 2.14, e = faixa cíclica de tensão nominal de membro de ramificação para carga axial. = faixa cíclica de tensão de flexão no plano. = faixa cíclica de tensão de flexão fora do plano. α é como definido na Tabela 2.10.
  • 61.
    AWS D1.1/D1.1M:2010 2.PROJETO DE CONEXÕES SOLDADAS Tabela 2.8 Limitações de Categoria de Fadiga no Tamanho ou Espessura da Solda e Perfil de Solda (Conexões Tubulares) (ver 2.21.6.7) Perfil de Solda Nível I Nível II Espessura de Limitação do Membro de Ramificação para Categorias X1, K1, DT in [mm] Espessura de Limitação para Membro de Ramificação para Categorias X2 , K2 in [mm] Perfil de solda plana padrão Figura 3.8 0,375 [10] 0,625 [16] Perfil com filete de extremidade Figura 3.9 0,625 [16] 1,50 [38] qualificado para espessura ilimitada para carga de compressão estática Perfil côncavo, soldagem em bruto, Figura 3.10 com teste de disco por 2.21.6.6(1) 1,00 [25]0 ilimitado Perfil liso côncavo Figura 3.10 completamente retificado por 2.21.6.6(2) Ilimitado — Tabela 2.9 Dimensões de Perda Z para Calcular Tamanhos de Solda Mínimos para Conexões Tubulares Pré-qualificadas T-, Y-,e K- PJP (ver 2.24.2.1) Posição de Soldagem: V ou OH Posição de Soldagem: H ou F Ângulo Incluído da Junta φ Processo Z (in) Z (mm) Processo Z (in) Z (mm) φ SMAW FCAW-S FCAW-G GMAW GMAW-S 0 0 0 N/A 0 0 0 0 N/A 0 SMAW FCAW-S FCAW-G GMAW GMAW-S 0 0 0 0 0 0 0 0 0 0 60 > φ SMAW FCAW-S FCAW-G GMAW GMAW-S 1/8 1/8 1/8 N/A 1/8 3 3 3 N/A 3 SMAW FCAW-S FCAW-G GMAW GMAW-S 1/8 0 0 0 0 3 0 0 0 3 45 > φ SMAW FCAW-S FCAW-G GMAW GMAW-S 1/4 1/4 3/8 N/A 3/8 6 6 10 N/A 10 SMAW FCAW-S FCAW-G GMAW GMAW-S 1/4 1/8 1/4 1/4 1/4 6 3 6 6 6
  • 62.
    AWS D1.1/D1.1M:2010 2.PROJETO DE CONEXÕES SOLDADAS Tabela 2.10 Termos para Resistência de Conexões (Seções Circulares) (ver 2.25.1.1) Geometria de membro de ramificação e modificador de carga Qq ( ) ( ) ( ) ( ) Para cargas axiais (ver Observação d) Para flexão Qβ (necessário para Qq) Qβ ,0 Para β ≤ 0,6 ( ) Para β > ,6 corda ovalização α , + ,7 g/db 1,0 ≤ α <1,7 Para carga axial em conexões K- de folga tendo todos os membros no mesmo plano e cargas transversais ao membro principal essencialmente equilibradas (ver Observação a) parâmetro α ,7 α 2,4 Para carga axial em conexões T- e Y- Para carga axial em conexões transversais α (necessário para Qq) α ,67 α ,5 Para flexão no plano (ver Observação c) Para flexão fora do plano (ver Observação c) Termo de interação de tensão do membro principal Qf (Ver Observações b e c) Qf = 1,0 – λ γ Ū2 λ , 3 Para carga axial em membro de ramificação λ , 44 Para flexão no plano em membros de ramificação λ , 8 Para flexão fora do plano em membros de ramificação a Folga g é definida nas Figuras 2.14 (E), (F), e (H); db é diâmetro da ramificação. b U é a taxa de utilização (taxa de real a permissível) para compressão longitudinal (axial, flexão) no membro principal na conexão sob consideração. U2 c Para combinações de flexão no plano e flexão fora do plano, use valores interpolados de α e λ. d Para colapso geral (compressão transversal) ver também 2.25.1.2. Notas: . γ , β são parâmetros de geometria definidos pela Figura 2.14 (M). 2. Fyo = o limite de escoamento mínimo especificado do membro principal, mas não mais que 2/3 da resistência à tração.
  • 63.
    AWS D1.1/D1.1M:2010 2.PROJETO DE CONEXÕES SOLDADAS Figura 2.1 - Tamanho Máximo de Solda de Filete Ao Longo das Arestas em Juntas Sobrepostas (ver 2.4.2.9)
  • 64.
    AWS D1.1/D1.1M:2010 2.PROJETO DE CONEXÕES SOLDADAS Figura 2.2 - Transição de Juntas de Topo em Partes de Espessura Desigual (Não-tubulares Carregadas Estaticamente) (ver 2.17.1.1)
  • 65.
    AWS D1.1/D1.1M:2010 2.PROJETO DE CONEXÕES SOLDADAS Figura 2.3—Transição das Espessuras (Não-tubulares Carregadas Estaticamente) (ver 2.7.5 e 2.8.1) Figura 2.4 - Soldas de Filete Carregadas Transversalmente (ver 2.9.1.2)
  • 66.
    AWS D1.1/D1.1M:2010 2.PROJETO DE CONEXÕES SOLDADAS Figura 2.5 - Comprimento Mínimo de Soldas de Filete Longitudinais na Extremidade de Membros de Placa ou Barra Chata (ver 2.9.2) Figura 2.6 - Terminação de Soldas Próximo a Arestas Sujeitas a Tensão (ver 2.9.3.2)
  • 67.
    AWS D1.1/D1.1M:2010 2.PROJETO DE CONEXÕES SOLDADAS Figura 2.7 –Soldagem de Acabamentoem Conexões Flexíveis (ver 2.9.3.3) Figura 2.8 - Soldas de Filete em Lados Opostos de um Plano Comum (ver 2.9.3.5)
  • 68.
    AWS D1.1/D1.1M:2010 2.PROJETO DE CONEXÕES SOLDADAS Observação: A área efetiva da solda 2 deve ser igual à da solda 1, mas o seu tamanho deve ser o seu tamanho efetivo mais a espessura da Placa de enchimento T. Figura 2.9 – Placas de Enchimento Finas em Junta de Emenda (ver 2.11.1) Observação: A área efetiva das soldas 1, 2, e 3 deve ser adequada para transmitir a força do projeto, e o comprimento das soldas 1 e 2 deve ser adequado para evitar tensão excessiva da placa de enchimento em cisalhamento ao longo dos planos x-x. Figura 2.10 – Placas de Enchimento Grossas em Junta de Emenda (ver 2.11.2)
  • 69.
    AWS D1.1/D1.1M:2010 2.PROJETO DE CONEXÕES SOLDADAS Figura 2.11 – Faixa de Tensão Permissível para Carga Aplicada Ciclicamente (Fadiga) em Conexões Não-tubulares (Traçado Gráfico da Tabela 2.5)
  • 70.
    AWS D1.1/D1.1M:2010 2.PROJETO DE CONEXÕES SOLDADAS Figura 2.12—Transição da Largura (Não-tubular Carregada Ciclicamente) (ver 2.17.1.2) Figura 2.13—Tensão de Fadiga Permissível e Faixas de Deformação para Categorias de Tensão (ver Tabela 2.7), Estruturas Tubulares Redundantes para Serviço Atmosférico (ver 2.21.6.3)
  • 71.
    AWS D1.1/D1.1M:2010 2.PROJETO DE CONEXÕES SOLDADAS a Folga relevante é entre cintas cujas cargas estão essencialmente equilibradas. O tipo (2) também pode ser designado como uma conexão N-. Figura 2.14—Partes de uma Conexão Tubular (ver 2.22)
  • 72.
    AWS D1.1/D1.1M:2010 2.PROJETO DE CONEXÕES SOLDADAS Figura 2.14 (Continuação) - Partes de uma Conexão Tubular (ver 2.22)
  • 73.
    AWS D1.1/D1.1M:2010 2.PROJETO DE CONEXÕES SOLDADAS Figura 2.14 (Continuação) - Partes de uma Conexão Tubular (ver 2.22)
  • 74.
    AWS D1.1/D1.1M:2010 2.PROJETO DE CONEXÕES SOLDADAS Nota: L = tamanho como requerido Figura 2.15—Junta Sobreposta Soldada com Filete (Tubular) (ver 2.24.1.3) Figura 2.16—Raio de Alcance de Solda de Filete em Conexões Tubulares T-, Y-, e K- (ver 2.24.3)
  • 75.
    AWS D1.1/D1.1M:2010 2.PROJETO DE CONEXÕES SOLDADAS Figura 2.17—Tensão de PuncionamentoPuncionamento(ver 2.25.1.1) Figura 2.18—Detalhe de Sobreposição de Junta (ver 2.25.1.6)
  • 76.
    AWS D1.1/D1.1M:2010 2.PROJETO DE CONEXÕES SOLDADAS Notas: 1. - ,55H ≤ e ≤ ,25H 2. ≤ 3 º 3. H/tc e D/tc ≤ 35 (4 para sobreposição em K e conexões em N) 4. a/tb e b/tb ≤ 35 5. Fyo ≤ 52 ksi 36 Mpa 6. ,5 ≤ H/D ≤ 2, 7. Fyo/Fult ≤ ,8 Figura 2.19 – Limitações para Conexões de Caixaem T-, Y- e K (ver 2.25.2) Figura 2.20 – Conexões Sobrepostas em K (ver 2.25.2.4)
  • 77.
    Notas: 1. O chanfropode ser de qualquer tipo ou detalhe permitido ou qualificado. 2. As inclinações de transição exibidas são as máximas permitidas. 3. Em (B), (D), e (E) o chanfro pode ser de qualquer tipo e detalhe permitido e qualificado. As inclinações de transição exibidas são as máximas permitidas. Figura 2.21—Transição de Espessura de Juntas de Topo em Partes de Espessura Desigual (Tubulares) (ver 2.26) AWS D1.1/D1.1M:2010 2. PROJETO DE CONEXÕES SOLDADAS
  • 78.
    AWS D1.1/D1.1M:2010 140 Esta páginaestá em branco intencionalmente.
  • 79.
    AWS D1.1/D1.1M:2010 59 3. Pré-qualificaçãode WPSs 3.1 Escopo A pré-qualificação de WPSs (Welding Procedure Specifications – Especificações de Procedimento de Soldagem) deve ser definida como isenta de teste de qualificação de WPS exigida na Cláusula 4. Todas as WPSs pré-qualificadas deverão ser escritas. Para uma WPS ser pré-qualificada, será exigida conformidade com todos os requisitos aplicáveis da Cláusula 3. As WPSs que não estiverem em conformidade com os requisitos da Cláusula 3 poderão ser qualificadas por meio de testes nos termos da Cláusula 4. Para uma maior comodidade, o Anexo Q enumera as disposições a serem incluídas na WPS pré-qualificada e que deverão ser abordadas no programa de soldagem do fabricante ou do contratante. Soldadores, operadores de soldagem e soldadores ponteadores que utilizam WPSs pré-qualificadas devem ser classificados em conformidade com a Cláusula 4, Parte C. 3.2 Processos de Soldagem 3.2.1 Processos Pré-qualificados. Os processos WPSs SMAW, SAW, GMAW (exceto GMAW-S) e FCAW que cumprirem todas as disposições da Cláusula 3 deverão ser considerados como pré-qualificados e, portanto, aprovados para uso sem a realização de testes de qualificação de WPS para o processo. Para a pré- qualificação de WPS, será exigida conformidade com todos os requisitos aplicáveis da Cláusula 3 (ver 3.1). 3.2.2 Processos Aprovados de Codificação. Podem ser utilizadas os processos de soldagem ESW, EGW, GTAW e GMAW-S, desde que as WPSs sejam classificadas em conformidade com os requisitos da Cláusula 4. Note-se que os limites variáveis essenciais na Tabela 4.5 para GMAW devem ser igualmente aplicados em GMAW-S. 3.2.3 Outros Processos de Soldagem. Podem ser utilizados outros processos de soldagem não abrangidos por 3.2.1 e 3.2.2, desde que as WPSs sejam qualificadas por meio de testes aplicáveis, conforme descrito na Cláusula 4. 3.2.4 Fontes de Alimentação de FCAW e GMAW. FCAW e GMAW que forem consideradas como WPSs pré-qualificadas deverão ser feitas utilizando-se fontes de alimentação com voltagem constante (CV). 3.3 Combinações de Metal Base / Metal de Adição Apenas metais de base e metais de adição relacionados na Tabela 3.1 podem ser utilizados em WPSs pré- qualificadas. (Para a qualificação de metais de base e metais de adição que estão listados e de metais de base e metais de adição que não estão enumerados na Tabela 3.1, ver 4.2.1). As relações de resistência do metal base e do metal de adição abaixo devem ser utilizadas em conjunto com a Tabela 3.1 para determinar se são necessários metais de adição correspondentes ou não-correspondentes. Relações Metal(is) Base Força do Metal de Adição Relação Exigida Correspondentes Qualquer aço para si mesmo ou qualquer aço para outro no mesmo grupo Qualquer metal de adição listado no mesmo grupo
  • 80.
    AWS D1.1/D1.1M:2010 3.PRÉ-QUALIFICAÇÃO DE WPSS 60 Qualquer aço em um grupo para qualquer aço em outro grupo Qualquer metal de adição listado para cada grupo de força. [Os eletrodos de SMAW devem ser classificados como tendo um baixo nível de hidrogênio.] Não correspondentes Qualquer aço para qualquer aço em qualquer grupo Qualquer metal de adição listado em um grupo de força abaixo do grupo de menor força. [Os eletrodos de SMAW devem ser classificados como tendo um baixo nível de hidrogênio.] Nota: Consultar a Tabela 2.3 ou 2.6 para determinar os requisitos de resistência do metal de adição para igualar ou não a resistência do metal base. 3.4 Aprovação do engenheiro para anexos auxiliares Materiais não listados para anexos auxiliares que estejam dentro do intervalo de composição química de um aço relacionado na Tabela 3.1 podem ser usados em uma WPS pré-qualificada, quando aprovados pelo Engenheiro. O metal de adição e de pré-aquecimento mínimo deve estar em conformidade com 3.5, com base na força material similar e na composição química. 3.5 Requisitos de Temperaturas Mínimas de Pré-aquecimento e Interpasse As temperaturas de pré-aquecimento e de interpasse devem ser suficientes para evitar trincas. A Tabela 3.2 deve ser usada para determinar as temperaturas mínimas de pré-aquecimento e de interpasse para os aços relacionados na codificação. 3.5.1 Combinação Metal Base/Espessura. As temperaturas mínimas de pré-aquecimento e de interpasse aplicadas em uma junta composta de metais de base com pré-aquecimentos mínimos diferentes da Tabela 3.2 (com base na categoria e na espessura) devem ser as mais elevadas desses pré-aquecimentos mínimos. 3.5.2 Temperaturas de Pré-aquecimento e de Interpasse de SAW Alternativa. As temperaturas de pré-aquecimento e de interpasse para SAW com eletrodos paralelos ou múltiplos devem ser selecionadas em conformidade com a Tabela 3.2. Para soldas de chanfro ou de filete em passe único, para combinações de metais a serem soldados e o aporte de calor envolvido, e com a aprovação do engenheiro, as temperaturas de pré-aquecimento e de interpasse podem ser estabelecidas como sendo suficientes para reduzir a dureza na HAZs do metal base para menos de 225 o número de dureza de Vickers para aços com uma resistência à tração mínima especificada não superior a 60 ksi [415 MPa] e para menos de 280 o número de dureza de Vickers para aços com uma resistência à tração mínima especificada superior a 60 ksi [415 MPa], mas não superior a 70 ksi [485 MPa]. NOTE: O número de dureza de Vickers deve ser determinado em conformidade com a norma ASTM E 92. Se for utilizado outro método de dureza, o número de dureza equivalente deverá ser determinado a partir da ASTM E 140 e deverão ser realizados testes de acordo com as especificações ASTM aplicáveis. 3.5.2.1 Requisitos de Dureza. A determinação da dureza de HAZ deverá ser feita: (1) Nas seções transversais de análise macrográfica inicial de um espécime em teste de amostragem. (2) Na superfície do membro durante o andamento do trabalho. A superfície deve ser esmerilhada antes do teste de dureza: (a) A frequência dos ensaios em HAZ deve ocorrer em, pelo menos, uma área de testes por ligação soldada do metal mais espesso envolvido em uma junta com, cada qual, 50 pés [15 m] de soldas em chanfro ou par de soldas filetes. (b) Essas determinações de dureza podem ser interrompidas depois que o procedimento tiver sido estabelecido e a interrupção for aprovada pelo engenheiro 3.6 Limitação de Variáveis de WPS Todas as WPSs pré-qualificadas que serão utilizadas devem ser preparadas pelo fabricante, produtor ou contratante como WPSs pré-qualificadas escritas e devem estar disponíveis para quem estiver autorizado a utilizá-las ou examiná-las. A WPS escrita pode seguir qualquer formato adequado (ver Anexo N para exemplos). Os parâmetros de soldagem estabelecidos na Tabela 3.8 devem ser especificados na WPS escrita e para variáveis com limites dentro da faixa indicada. Mudanças para as variáveis essenciais além daquelas permitidas por meio da Tabela 3.8 devem exigir uma WPS pré-qualificada nova ou revista, ou devem exigir que a WPS seja qualificada através de testes nos termos da Cláusula 4. 3.6.1 Combinação de WPSs. Pode ser utilizada uma combinação de WPSs qualificadas e pré-qualificadas sem a qualificação do conjunto, desde que seja observada a limitação das variáveis essenciais aplicáveis em cada processo. 3.7 Requisitos Gerais de WPS Todos os requisitos da Tabela 3.7 devem ser cumpridos para WPSs pré-qualificadas. 3.7.1 Requisitos de Soldagem Vertical Ascendente. A progressão de todos os passes de soldagem em posição
  • 81.
    AWS D1.1/D1.1M:2010 3.PRÉ-QUALIFICAÇÃO DE WPSS 61 vertical deve ser ascendente, com as seguintes exceções: (1) A mordedura pode ser reparada verticalmente em sentido descendente, quando o pré-aquecimento estiver em conformidade com a Tabela 3.2, mas não inferior a 70 ° F [20 ° C]. (2) Quando os produtos tubulares são soldados, a progressão da soldagem vertical pode ser ascendente ou descendente, mas somente na(s) direção(ões) para a(s) qual(is) o soldador estiver qualificado. 3.7.2 Limitação de Largura/Profundidade do Passe. Nem a profundidade, nem a largura máxima na seção transversal do metal de solda depositado em cada passe de solda devem exceder a largura na superfície do passe de solda (ver Figura 3.1). 3.7.3 Requisitos de Aço Resistente à Corrosão Atmosférica. No caso de aplicações expostas, nuas e sem pintura de aço resistente à corrosão atmosférica que requer metal de solda com resistência à corrosão atmosférica e características de coloração semelhantes à do metal base, a combinação de eletrodo ou eletrodo-fluxo deve estar em conformidade com a Tabela 3.3. As exceções para esses requisitos são as seguintes: 3.7.3.1 Soldas de Chanfro em passe único. As soldas em chanfro feitas em passe único ou em passe único de cada lado podem ser realizadas utilizando-se qualquer um dos metais de adição para os metais de base do Grupo II na Tabela 3.1. 3.7.3.2 Soldas de Filete em Passe Único. Soldas de filete em passe único, até as dimensões abaixo, podem ser feitas utilizando-se qualquer um dos metais de adição para os metais de base do Grupo II relacionados na Tabela 3.1: SMAW ¼ in [6mm] SAW 5/16 in [8mm] GMAW/FCAW 5/16 in [8 mm] 3.7.4 Gás de Proteção. Gases de proteção para GMAW e FCAW-G devem estar em conformidade com a norma AWS A5.32/A5.32M e uma das seguintes opções: (1) O gás de proteção utilizado para classificação de eletrodo de acordo com as especificações AWS A5 aplicáveis. (2) Um gás de proteção recomendado para utilização com o eletrodo específico pelo fabricante do eletrodo. Tais recomendações devem ser sustentadas por testes que demonstram que a combinação eletrodo/gás de proteção é capaz de atender todos os requisitos de propriedades mecânicas e químicas para a classificação do eletrodo quando testado de acordo com as especificações A5 AWS aplicáveis. A documentação desses testes deve ser fornecida quando solicitada pelo engenheiro ou inspetor. 3.8 Requisitos Comuns para SAW de Eletrodos Paralelos e Eletrodos Múltiplos 3.8.1 Passe de Raiz de GMAW. As soldas também podem ser feitas na raiz de soldas em chanfro ou de filete utilizando-se GMAW, seguidas por arcos submersos de eletrodos paralelos ou múltiplos, desde que a GMAW esteja em conformidade com os requisitos desta seção e desde que o espaçamento entre o arco de GMAW e o seguinte arco de SAW não exceda 15 in [380 mm]. 3.9 Requisitos para Solda de Filete Consultar a Tabela 5.8 para tamanhos mínimos de solda de filete. 3.9.1 Detalhes (Não-tubular). Ver Figuras 2.1 e 2.4 para as limitações no caso de soldas de filete pré-qualificadas. 3.9.2 Detalhes (Tubular). Para status pré-qualificados, as conexões tubulares de soldagem de filete devem estar em conformidade com as seguintes disposições: (1) WPSs pré-qualificadas. As conexões tubulares de soldagem de filete feitas por meio dos processos de SMAW, GMAW ou FCAW, que podem ser utilizados sem a realização de testes de qualificação WPS, estão detalhadas na Figura 3.2 (ver 2.24.1.2 para limitações). Esses detalhes também podem ser utilizados no caso de GMAW-S qualificadas em conformidade com 4.13.4.3. (2) Os detalhes da solda de filete pré-qualificada em juntas sobrepostas estão mostrados na Figura 2.15. 3.9.3 Juntas Oblíquas em T. As juntas oblíquas em T devem estar em conformidade com a Figura 3.11. 3.9.3.1 Limitações do Ângulo Diedro. O lado obtuso das juntas oblíquas em T com ângulos diedros maiores que 100° deve ser preparado como mostrado na Figura 3.11, Detalhe C, a fim de permitir a colocação de uma solda do tamanho necessário. A quantidade de usinagem ou retificação etc. da Figura 3.11, Detalhe C, não deve ser maior que o exigido para atingir o tamanho de solda necessário (W). 3.9.3.2 Tamanho Mínimo de Solda para Juntas Oblíquas em T. No caso das juntas oblíquas em T, o tamanho mínimo da solda para os Detalhes A, B e C na Figura 3.11 deve estar em conformidade com a Tabela 5.8. 3.10 Requisitos para Soldas de Tampão (Soldas Plug e Slot) Os detalhes de soldas de tampão (plug e slot) feitas por meio dos processos de SMAW, GMAW (exceto GMAW-S) ou FCAW estão descritos em 2.4.5.1, 2.4.5.2, 2.4.5.4 e 2.10.4 e podem ser utilizados sem a realização da qualificação WPS
  • 82.
    AWS D1.1/D1.1M:2010 3.PRÉ-QUALIFICAÇÃO DE WPSS 62 descrita na Cláusula 4, desde que as disposições técnicas de 5.25 sejam observadas. 3.11 Requisitos Comuns de Soldas em Chanfro PJP e CJP 3.11.1 FCAW/GMAW em Juntas SMAW. As preparações em chanfro detalhadas para juntas SMAW pré-qualificadas podem ser utilizadas para GMAW ou FCAW pré-qualificada. 3.11.2 Preparação de Junta de Ângulo. No caso de juntas de ângulo, a preparação do chanfro externo pode ser feita em um ou ambos os membros, desde que a configuração básica do chanfro não seja alterada e a distância adequada da aresta seja mantida para dar suporte às operações de soldagem sem fusão excessiva. 3.11.3 Aberturas de Raiz. As aberturas de raiz na junta podem variar conforme observado em 3.12.3 e 3.13.1. No entanto, para a soldagem automática ou mecanizada utilizando processos de FCAW, GMAW e SAW, a variação de abertura máxima de raiz (abertura de mínima para máxima como ajuste) não pode exceder 1/8 in [3 mm]. Variações maiores que 1/8 in [3 mm] devem ser corrigidas localmente, antes da soldagem automática ou mecanizada. 3.12 Requisitos de PJP As soldas em chanfro com PJP devem ser feitas utilizando-se os detalhes de junta descritos na Figura 3.3. As limitações dimensionais da junta descritas em 3.12.3 deverão ser aplicadas. 3.12.1 Definição. Salvo as disposições de 3.13.5 e Figura 3.4 (B-L1-S), as soldas em chanfro sem suporte de aço, soldadas de um lado, e as soldas em chanfro soldadas de ambos os lados, mas sem goivagem por trás, são consideradas soldas em chanfro com PJP. 3.12.2 Tamanho de Solda. O tamanho de solda (E) de um chanfro PJP pré-qualificado deve ser como mostrado na Figura 3.3 para o processo específico de soldagem, indicação da junta, o ângulo de chanfro e a posição de soldagem propostos para utilização na fabricação da solda. 3.12.2.1 Tamanhos de Solda Pré-qualificados (1) O tamanho mínimo de solda das soldas de chanfro em V simples ou em X, em bisel, em J e em U, com PJP, tipos de 2 a 9, deve ser como mostrado na Tabela 3.4. A espessura do metal base deve ser suficiente para incorporar os requisitos dos detalhes da junta selecionada, em conformidade com as variações descritas no 3.12.3 e os requisitos da Tabela 3.4. (2) A espessura máxima do metal base não deve ser limitada. (3) As dimensões mínimas da solda em chanfro quadrado B-P1 e as soldas de chanfro em bisel curvado BTC-P10 e B-P11 de PJP devem ser calculadas a partir da Figura 3.3. (4) Os desenhos de oficina e de execução devem especificar as profundidades dos chanfros do projeto “S” aplicáveis para o tamanho de solda “(E)” necessário nos termos de 3.12.2. (Note que essa exigência não se aplica aos detalhes B-P1, BTC-P10 e P11-B.) 3.12.3 Dimensões da junta (1) As dimensões das soldas em chanfro especificadas em 3.12 podem variar no projeto ou nos desenhos de detalhe dentro dos limites de tolerância indicados na coluna “Como Detalhado” na Figura 3.3. (2) As tolerâncias de ajuste da Figura 3.3 podem ser aplicadas às dimensões indicadas no desenho de detalhe. No entanto, a utilização de tolerâncias de ajuste não isenta o usuário de cumprir os requisitos mínimos do tamanho de solda do parágrafo 3.12.2.1. (3) Chanfros em J e em U podem ser preparados antes ou depois da montagem. 3.12.4 Detalhes (Tubular). Os detalhes para soldas de chanfro tubulares PJP, às quais são atribuídos status pré-qualificados, devem estar em conformidade com as seguintes disposições: (1) As soldas em chanfro tubulares PJP, menos as conexões em T, Y e K, podem ser utilizadas sem a realização de testes de qualificação WPS, quando estes podem ser aplicados, e devem cobrir todas as limitações da dimensão da junta, conforme descrito naFigura 3.3. (2) As conexões tubulares em T, Y e K com PJP, soldadas apenas por meio dos processos SMAW, GMAW ou FCAW, podem ser utilizadas sem a realização de testes de qualificação WPS, quando estes puderem ser aplicados, e devem cobrir todos os limites da dimensão da junta, conforme descrito na Figura 3.5. Esses detalhes também podem ser utilizados em GMAW-S qualificadas, em conformidade com 4.13.4.3. 3.12.4.1 Conexões Combinadas de Caixa. Os detalhes para soldas em chanfro PJP nessas conexões, as dimensões do canto e os raios do tubo principal são mostrados na Figura 3.5. As soldas de filete podem ser utilizadas nas áreas da extremidade e do calcanhar (ver Figura 3.2). Se a dimensão do ângulo ou o raio do tubo principal, ou ambos forem menores, como mostrado na Figura 3.5, uma junta de amostragem do detalhe lateral deve ser feita e seccionada para verificar o tamanho de solda. A solda de ensaio deve ser feita na posição horizontal. Essa exigência pode ser dispensada se o tubo de ramificação for biselado, tal como mostrado, no caso de soldas em chanfro com CJP, na Figura 3.6. 3.13 Requisitos de Solda em Chanfro com CJP As soldas em chanfro com CJP que podem ser usadas sem a realização de testes de qualificação WPS descritas na Cláusula 4 devem ser como detalhado na Figura 3.4 e estão sujeitas aos limites descritos em 3.13.1. 3.13.1 Dimensões da Junta. As dimensões das soldas em chanfro especificadas em 3.13 podem variar no
  • 83.
    AWS D1.1/D1.1M:2010 3.PRÉ-QUALIFICAÇÃO DE WPSS 63 projeto ou nos desenhos de detalhe dentro dos limites ou tolerâncias mostrados na coluna "Como detalhado" na Figura 3.4. O ajuste do limite de tolerância da Figura 3.4 pode ser aplicado à dimensão mostrada no desenho de detalhe. 3.13.2 Suporte. As soldas de chanfro pré-qualificadas com CJP feitas de um só lado, exceto quando permitido para estruturas tubulares, devem ter suporte de aço. Outros suportes, tal como enumerados em 5.10, podem ser utilizados, se qualificados em conformidade com a Cláusula 4. 3.13.3 Preparação de Chanfro Duplo. Os chanfros em J e em U e o outro lado de chanfros em X e em bisel duplo (ou K) parcialmente soldados podem ser preparados antes ou após a montagem. Após a goivagem por trás, o lado oposto das juntas em X ou em bisel duplo (ou K) parcialmente soldado deveria se assemelhar a uma configuração de junta em U ou em J pré-qualificada na raiz da junta. 3.13.4 Juntas de Topo Tubulares. Para as soldas de chanfro tubulares, a fim de que lhes seja atribuído um status pré-qualificado, as seguintes condições devem ser aplicadas: (1) WPSs Pré-qualificadas. Onde a soldagem de ambos os lados ou soldagem de um lado com reforço for possível, qualquer WPS e qualquer detalhe em chanfro que tiver sido devidamente pré-qualificado, em conformidade com a Cláusula 3, pode ser utilizado, a não ser que a SAW esteja pré-qualificada apenas para diâmetros maiores ou iguais a 24 in. [600 mm]. Os detalhes da junta soldada devem respeitar a Cláusula 3. (2) Detalhe de Junta Não Pré-qualificada. Não existem detalhes de junta pré-qualificada para soldas de chanfro com CJP em juntas de topo feitas de um lado sem reforço (ver 4.13.2). 3.13.5 Conexões Tubulares em T, Y e K. Os detalhes para soldas em chanfro com CJP soldadas de um lado sem suporte em conexões tubulares em T, Y e K utilizadas em tubos circulares estão descritos nesta seção. A gama circunferencial aplicável de Detalhes A, B, C e D está descrita nas Figuras 3.6 e 3.7 e os intervalos de ângulos diedros locais, Ψ , que correspondem aos mesmos, estão descritos na Tabela 3.5. As dimensões da junta que incluem ângulos de chanfro estão descritas na Tabela 3.6 e na Figura 3.8. Ao selecionar um perfil (compatível com a categoria de fadiga usado no projeto) como uma função da espessura, as diretrizes de 2.21.6.7 deverão ser observadas. Perfis alternativos de solda, que podem ser necessários para seções mais espessas, estão descritos na Figura 3.9. Na ausência de requisitos especiais de fadiga, esses perfis devem ser aplicados às espessuras de ramificação superiores a 5/8 in [16 mm]. Perfis melhorados de solda que atendem os requisitos de 2.21.6.6 e 2.21.6.7 estão descritos na Figura 3.10. Na ausência de requisitos especiais de fadiga, esses perfis devem ser aplicados às espessuras de ramificação superiores a 1-1/2 in [38 mm] (não é necessário para a carga de compressão estática). Os detalhes pré-qualificados para soldas de chanfro em conexões tubulares em T, Y e K, que utilizam seções da caixa, estão também descritos na Figura 3.6. Os detalhes anteriores estão sujeitos à restrição do parágrafo 3.13.4. NOTA: Ver o Comentário para orientação técnica na seleção de um perfil desejável. As dimensões da junta e os ângulos de chanfro não devem variar a partir dos intervalos detalhados na Tabela 3.6 e mostrados nas Figuras 3.6 e 3.8 através de 3.10. A superfície do talão da raiz das juntas deve ser zero, a não ser que dimensionada de outra forma. Ela pode ser detalhada para exceder zero ou a dimensão especificada para não mais que 1/16 in [2 mm]. Ela não pode ser detalhada como menor que as dimensões especificadas. 3.13.5.1 Detalhes da junta. Os detalhes para soldas de chanfro CJP em conexões tubulares em T, Y e K estão descritos em 3.13.5. Esses detalhes são pré-qualificados para SMAW e FCAW e podem também ser utilizados para GMAW-S qualificadas em conformidade com 4.13.4.3. 3.14 Tratamento Térmico Pós- Soldagem O Tratamento Térmico Pós-Soldagem (PWHT) deve ser pré-qualificado, desde que seja aprovado pelo engenheiro e que as condições abaixo sejam observadas. (1) O limite mínimo de elasticidade especificado do metal base não deve exceder 50 ksi [345 MPa]. (2) O metal base não deverá ser fabricado por têmpera e revenimento (Q & T), têmpera e auto- revenimento (Q & ST), termo-mecânica de processamento controlado (TMCP) ou, quando o trabalho a frio for utilizado para alcançar propriedades mecânicas maiores (por exemplo, certos graus de tubulação ASTM A-500). (3) Não deve haver requisitos para teste de resistência do metal base, HAZ ou metal de solda. (4) Deve haver dados disponíveis demonstrando que o metal de solda deve ter resistência e ductilidade adequadas na condição de PWHT (por exemplo, como podem ser encontrados nas especificações e classificação relevante AWS A5.X do metal de adição ou com o fabricante do metal de adição). (5) O PWHT deve ser conduzido em conformidade com 5.8.
  • 84.
    Tabela 3.1 Metal BasePré-qualificado — Combinações do Metal de Adição para Resistência Correspondente (ver 3.3) G r u p o Requisitos de Especificação do Aço Requisitos do Metal de Adição Ponto/Limite Mínimo de Elasticidade Faixa de Tensão Processo Especificações do Eletrodo AWS Classificação do Eletrodo Especificações do Aço ksi MPa ksi MPa ASTM A 36 (≤ 3/4 IN 2 mm ) 36 250 58-80 400-550 ASTM A 53 Grau B 35 240 60 min 415 min SMAW A5.1 E60XX, E70XX ASTM A 106 Grau B 35 240 60 min 415 min ASTM A 131 Grau A, B, CS, D, DS, E 34 235 58-75 400-520 A5.5c E70XX-X ASTM A 139 Grau B 35 240 60 min 415 min ASTM A 381 Grau Y35 35 240 60 min 415 min ASTM A 500 Grau A 33 230 45 min 310 min SAW A5.17 F6XX-EXXX, F6XX-ECXXX, Grau B 42 290 58 min 400 min F7XX-EXXX, F7XX-ECXXX Grau C 46 315 62 min 425 min A5.23c F7XX-EXXX-XX, ASTM A 501 36 250 58 min 400 min F7XX-ECXXX-XX ASTM A 516 Grau 55 30 205 55-75 380-515 Grau 60 32 220 60-80 415-550 ASTM A 524 Grau I 35 240 60-85 415-586 GMAW A5.18 ER70S-X, E70C-XC, Grau II 30 205 55-80 380-550 E70C-XM (Eletrodos com I ASTM A 573 Grau 65 35 240 65-77 450-530 o sufixo -GS devem ser excluídos) Grau 58 32 220 58-71 400-490 A5.28c ER70S-XXX, E70C-XXX ASTM A 709 Grau 36 (≤3/4 in 2 mm ) 36 250 58–80 400–550 ASTM A 1008 SS Grau 30 30 205 45 min. 310 min. Grau 33 Tipo 1 33 230 48 min. 330 min. FCAW A5.20 E7XT-X, E7XT-XC, E7XT-XM Grau 40 Tipo 1 40 275 52 min. 360 min. (os eletrodos com os sufixos -2C, -2M, ASTM A 1011 SS Grau 30 30 205 49 min. 340 min. -3, -10, -13, -14 e -GS devem ser Grau 33 33 230 52 min. 360 min. excluídos e os eletrodos com o sufixo Grau 36 Tipo 1 36 250 53 min. 365 min. -11 devem ser excluídos para Grau 40 40 275 55 min. 380 min. espessuras maiores que 1/2 in [12mm]) Grau 45 45 310 60 min. 410 min. API 5L Grau B 35 241 60 414 A5.29c E6XTX-X, E6XTX-XC, Grau X42 42 290 60 414 E6XT-XM, E7XTX-X, ABS Graus A, B, D, CS, DS 34 235 58–75 400–520 E7XTX-XC, E7XTX-XM Grau Eb 34 235 58–75 400–520 (Continua) AWS D1.1/D1.1M:2010 3. PRÉ-QUALIFICAÇÃO DE WPSS
  • 85.
    Tabela 3.1 (Continuação) MetalBase Pré-qualificado — Combinações do Metal de Adição para Resistência Correspondente (ver 3.3) G r u p o Requisitos de Especificação do Aço Requisitos do Metal de Adição Ponto/Limite Mínimo de Elasticidade Faixa de Tensão Processo Especificações do Eletrodo AWS Classificação do Eletrodo Especificações do Aço ksi MPa ksi MPa ASTM A 36 (≤ 3/4 IN 2 mm ) 36 250 58-80 400-550 ASTM A 131 Graus AH32, DH32, EH32 46 315 64-85 440-590 Graus AH36, DH36, EH36 51 355 71-90 490-620 ASTM A 441 40-50 275-345 60-70 415-485 ASTM A 516 Grau 65 35 240 65-85 450-585 SMAW A5.1 E7015, E7016, E7018, E7028 Grau 70 38 260 70-90 485-620 ASTM A 529 Grau 50 50 345 70–100 485–690 A5.5c E7015-X, E7016-X, E7018-X Grau 55 55 380 70–100 485–690 ASTM A 537 Classe 1 45-50 310-345 65-90 450-620 ASTM A 572 Grau 42 42 290 60 min. 415 min. SAW A5.17 F7XX-EXXX, F7XX-ECXXX Grau 50 50 345 65 min. 450 min. Grau 55 55 380 70 min. 485 min. A5.23c F7XX-EXXX-XX, ASTM A 588b (4 in [100 mm] e inferior) 50 345 70 min. 485 min. F7XX-ECXXX-XX ASTM A 595 Grau A 55 380 65 min. 450 min. Graus B e C 60 410 70 min. 480 min. ASTM A 606b 45-50 310-340 65 min. 450 min. GMAW A5.18 ER70S-X, E70C-XC, ASTM A 618 Graus Ib, II, III 46-50 315-345 65 min. 450 min. E70C-XM (os eletrodos com ASTM A 633 Grau A 42 290 63-83 430-570 o sufixo -GS devem ser excluídos) II Graus C, D 50 345 70-90 485-620 (2-1/2 in [65 mm] e inferior) ASTM A 709 Grau 36 (>3/4 in [20 mm]) 36 250 58–80 400–550 A5.28c ER70S-XXX, E70C-XXX Grau 50 50 345 65 min. 450 min. Grau 50Wb 50 345 70 min. 485 min. Grau 50S 50-65 345-450 65 min. 450 min. FCAW A5.20 E7XT-X, E7XT-XC, E7XT-XM Grau HPS 50Wb 50 345 70 min. 485 min. (os eletrodos com os sufixos -2C, ASTM A 710 Grau A, Classe 2>2 in [50mm] 50-55 345–380 60-65 415-450 -2M, -3, -10, -13, -14 e -GS devem ASTM A 808 (2-1/2 in [65 mm] e inferior) 42 290 60 min. 415 min. ser excluídos e os eletrodos com ASTM A 913 Grau 50 50 345 65 min. 450 min. o sufixo -11 devem ser excluídos ASTM A 992 50-65 345–450 65 min. 450 min. para espessuras maiores que ASTM A 1008 HSLAS Grau 45 Classe 1 45 310 60 min. 410 min. 1/2 in [12mm]) Grau 45 Classe 2 45 310 55 min. 380 min. Grau 50 Classe 1 50 340 65 min. 450 min. A5.29c E7XTX-X, E7XTX-XC, E7XT-XM Grau 50 Classe 2 50 340 60 min. 410 min. Grau 55 Classe 1 55 380 65 min. 450 min. Grau 55 Classe 2 55 380 65 min. 450 min. ASTM A 1008 HSLAS-F Grau 50 50 340 60 min. 410 min. 3. PRÉ-QUALIFICAÇÃO DE WPSS AWS D1.1/D1.1M:2010
  • 86.
    (Continua) Tabela 3.1 (Continuação) MetalBase Pré-qualificado — Combinações do Metal de Adição para Resistência Correspondente (ver 3.3) G r u p o Requisitos de Especificação do Aço Requisitos do Metal de Adição Ponto/Limite Mínimo de Elasticidade Faixa de Tensão Processo Especificações do Eletrodo AWS Classificação do Eletrodo Especificações do Aço ksi MPa ksi MPa ASTM A 1011 HSLAS Grau 45 Classe 1 45 310 60 min. 410 min. Grau 45 Classe 2 45 310 55 min. 380 min. Grau 50 Classe 1 50 340 65 min. 450 min. Grau 50 Classe 2 50 340 60 min. 410 min. SMAW A5.1 E7015, E7016, E7018, E7028 Grau 55 Classe 1 55 380 70 min. 480 min. Grau 55 Classe 2 55 380 65 min. 450 min. A5.5c E7015-X, E7016-X, E7018-X ASTM A 1011 HSLAS-F Grau 50 50 340 60 min. 410 min. ASTM A 1011 SS Grau 50 50 340 65 min. 450 min. Grau 55 55 380 70 min. 480 min. SAW A5.17 F7XX-EXXX, F7XX-ECXXX ASTM A 1018 HSLAS Grau 45 Classe 1 45 310 60 min. 410 min. Grau 45 Classe 2 45 310 55 min. 380 min. A5.23c F7XX-EXXX-XX, Grau 50 Classe 1 50 340 65 min. 450 min. F7XX-ECXXX-XX Grau 50 Classe 2 50 340 60 min. 410 min. Grau 55 Classe 1 55 380 70 min. 480 min. GMAW A5.18 ER70S-X, E70C-XC, Grau 55 Classe 2 55 380 65 min. 450 min. E70C-XM (os eletrodos com o sufixo -GS devem ser excluídos) II ASTM A 1018 HSLAS-F Grau 50 50 340 60 min. 410 min. ASTM A 1018 SS Grau 30 30 205 49 min. 340 min. Grau 33 33 230 52 min. 360 min. A5.28c ER70S-XXX, E70C-XXX Graus 36 36 250 53 min. 365 min. Grau 40 40 275 55 min. 380 min. API 2H Grau 42 42 289 62-82 427-565 FCAW A5.20 E7XT-X, E7XT-XC, E7XT-XM Grau 50 50 345 70-90 483-620 (os eletrodos com os sufixos -2C, API 2MT 1 Grau 50 50 345 65-90 488-620 -2M, -3, -10, -13, -14 e -GS devem API 2W Grau 42 42-67 290-462 62 min. 427 min. Ser excluídos e os eletrodos com o Grau 50 50-75 345-517 65 min. 448 min. sufixo -11 devem ser excluídos Grau 50T 50-80 345-552 70 min. 483 min. para espessuras maiores que API 2Y Grau 42 42-67 290-462 62 min. 427 min. 1/2 in [12mm]) Grau 50 50-75 345-517 65 min. 448 min. Grau 50T 50-80 345-552 70 min. 483 min. A5.29c E7XTX-X, E7XTX-XC, E7XT-XM API 5L Grau X52 52 359 66 min. 455 min. ABS Graus AH32, DH32, EH32 46 315 64-85 440-590 Graus AH36, DH36, EH36b 51 355 71-90 490-620 (Continua) AWS D1.1/D1.1M:2010 3. PRÉ-QUALIFICAÇÃO DE WPSS
  • 87.
    Tabela 3.1 (Continuação) MetalBase Pré-qualificado — Combinações do Metal de Adição para Resistência Correspondente (ver 3.3) G r u p o Requisitos de Especificação do Aço Requisitos do Metal de Adição Ponto/Limite Mínimo de Elasticidade Faixa de Tensão Processo Especificações do Eletrodo AWS Classificação do Eletrodo Especificações do Aço ksi MPa ksi MPa API 2W Grau 60 60-90 414-621 75 min. 517 min. API 2Y Grau 60 60-90 414-621 75 min. 517 min. ASTM A 537 Classe 2b 46-60 315-415 70-100 485-690 SMAW A5.5c E8015-X, E8016-X, E8018-X ASTM A 572 Grau 60 60 415 75 min. 520 min. Grau 65 65 450 80 min. 550 min. SAW A5.23c F8XX-EXXX-XX, ASTM A 633 Grau Eb 55-60 380-415 75-100 515-690 F8XX-ECXXX-XX ASTM A 710 Grau A, Classe 2≤2 in 5 mm 60-65 415-450 72 min. 495 min. III ASTM A 710 Grau A,Classe 3>2 in [50mm] 60-65 415-450 70–75 485–515 GMAW A5.28c ER80S-XXX, ASTM A 913a Grau 60 60 415 75 min. 520 min. E80C-XXX Grau 65 65 450 80 min. 550 min. ASTM A 1018 HSLAS Grau 60 Classe 2 60 410 70 min. 480 min. FCAW A5.29c E8XTX-X, E8XTX-XC, Grau 70 Classe 2 70 480 80 min. 550 min. E8XT-XM ASTM A 1018 HSLAS -F Grau 60 Classe 2 60 410 70 min. 480 min. Grau 70 Classe 2 70 480 80 min. 550 min. SMAW A5.5c E9015-X, E9016-X, E9018-X, E9018M SAW A5.23c F9XX-EXXX-XX, IV ASTM A 709 Grau HPS70W 70 485 85-110 585-760 F9XX-ECXXX-XX ASTM A 852 70 485 90-110 620-760 GMAW A5.28c ER90S-XXX, E90C-XXX FCAW A5.29c E9XTX-X, E9XTX-XC, E9XT-XM a Os limites do aporte de calor de 5 7 não devem ser aplicados a ASTM A 913, Grau 60 ou 65 b Os materiais com soldagem especial e WPS (por exemplo, eletrodos de baixa liga E80XX-X) podem ser necessários para nivelar a ductilidade do metal base (para aplicações envolvendo carga dinâmica ou baixa temperatura) ou em características de corrosão atmosférica e de exposição às intempéries (ver 3 7 3) c Os metais de adição da família das ligas metálicas B3, B3L, B4, B4L, B5, B5L, B6, B6L, B7, B7L, B8, B8L, B9, E9015-C5L, E9015-D1, E9018-D1, E9018-D3 ou qualquer grau BXH nas AWSs A5 5, A5 23, A5 28 ou A5 29 não estão pré-qualificados para uso em condições de soldagem em bruto Notas: 1 Nas juntas que envolvem metais de diferentes grupos, pode ser utilizado um dos seguintes metais de adição: (1) aquele que corresponde ao metal base de maior resistência; ou (2) aquele que corresponde ao metal base de menor resistência e produz um depósito com baixo nível de hidrogênio 2 Nivelar com API padrão 2B (tubos fabricados) de acordo com o aço utilizado 3 Quando as soldas são submetidas a recozimento para redução de tensões o metal de solda depositado não deve exceder 0,05% de vanádio 4 Ver Tabelas 2 3 e 2 6 para os requisitos de tensão admissível para o metal de adição correspondente 5 As propriedades do metal de adição foram movidas para o Anexo V não obrigatório 6 Os eletrodos AWS A5M (Unidades SI) de mesma classificação podem ser utilizados no lugar da classificação do eletrodo AWS A5 (Unidades Convencionais dos EUA) 7 Qualquer uma das classificações do eletrodo para um Grupo específico (localizado à direita) pode ser utilizada para soldar quaisquer metais de base no Grupo (localizado à esquerda) 3. PRÉ-QUALIFICAÇÃO DE WPSS AWS D1.1/D1.1M:2010
  • 88.
    3- PRE QUALIFICAÇÃODE WPSS AWS D1.1/D1.1M:2010 140 Tabela 3.2 Temperaturas Mínimas Pré-qualificadas de Pré-aquecimento e de Interpasse (ver 3.5) C a t e g o r i a Especificações do Aço Processo de Soldagem Espessura daparte mais espessa no ponto de soldagem Temperaturas Mínimas de Pré-aquecimento e de Interpasse in nm F C ASTM A 36 ASTM A 53 Grau B ASTM A 106 Grau B ASTM A 131 Grau A, B, CS, D, DS, E ASTM A 139 Grau B ASTM A 381 Grau Y35 ASTM A 500 Grau A Grau B Grau C 1/8 a 3/4 3 a 20 32a 0a ASTM A 501 incl. incl. ASTM A 516 ASTM A 524 Graus I & II SMAW Acima de 3/4 Acima de 20 150 65 ASTM A 573 Grau 65 com outros que com 1-1/2 com 38 A ASTM A 709 Grau 36 não sejam incl. incl. ASTM A 1008 SS Grau 30 eletrodos com Grau 33 Tipo 1 baixo nível de Acima de 1-1/2 Acima de 38 225 110 Grau 40 Tipo 1 hidrogênio com 2-1/2 com 65 ASTM A 1011 SS Grau 30 incl. incl. Grau 33 Grau 36 Tipo 1 Acima de 2-1/2 Acima de 65 300 150 Grau 40 Grau 45 Grau 50 Grau 55 API 5L Grau B Grau X42 ABS Graus A, B, D, CS, DS Grau E ASTM A 36 ASTM A 53 Grau B ASTM A 106 Grau B ASTM A 131 Graus A, B, CS, D, DS, E 1/8 a 3/4 3 a 20 32a 0a AH 32 & 36 incl. incl. DH 32 & 36 EH 32 & 36 SMAW ASTM A 139 Grau B com eletrodos Acima de 3/4 Acima de 20 50 10 ASTM A 381 Grau Y35 com baixo nível com 1-1/2 com 38 B ASTM A 441 de hidrogênio incl. incl. ASTM A 500 Grau A SAW, Grau B GMAW, Acima de 1-1/2 Acima de 38 150 65 Grau C FCAW, com 2-1/2 com 65 ASTM A 501 incl. incl. ASTM A 516 Graus 55 & 60 65 & 70 Acima de 2-1/2 Acima de 65 225 110 ASTM A 524 Graus I & II ASTM A 529 Graus 50 & 55
  • 89.
    AWS D1.1/D1.1M:2010 3-PRE QUALIFICAÇÃO DE WPSS 69 ASTM A 537 Classes 1 & 2 ASTM A 572 Graus 42, 50, 55 (Continua)
  • 90.
    AWS D1.1/D1.1M:2010 3-PRE QUALIFICAÇÃO DE WPSS 70 Tabela 3.2 (continuação) Temperaturas Mìnimas Pré-qualificadas de Pré-aquecimento e de Interpasse (ver 3.5) C a t e g o r i a Especificações do Aço Processo de Soldagem Espessura daparte mais espessa no ponto de soldagem Temperaturas Mínimas de Pré-aquecimento e de Interpasse in nm F C ASTM A 573 Grau 65 ASTM A 588 ASTM A 595 Graus A, B, C ASTM A 606 ASTM A 618 Graus Ib, II, III ASTM A 633 Graus A, B Graus C, D ASTM A 709 Graus 36, 50, 50S, 50W, HPS 50W ASTM A 710 Grau A, Classe 2 (>2 in [50 mm]) ASTM A 808 ASTM A 913b Grau 50 ASTM A 992 ASTM A 1008 HSLAS Grau 45 Classe 1 Grau 45 Classe 2 Grau 50 Classe 1 Grau 50 Classe 2 Grau 55 Classe 1 Grau 55 Classe 2 1/8 a 3/4 3 a 20 32a 0a ASTM A 1008 HSLAS- F Grau 50 incl. incl. ASTM A 1011 HSLAS Grau 45 Classe 1 Grau 45 Classe 2 SMAW Grau 50 Classe 1 com eletrodos Acima de 3/4 Acima de 20 50 10 B Grau 50 Classe 2 com baixo nível com 1-1/2 com 38 (cont ) Grau 55 Classe 1 de hidrogênio, incl. incl. Grau 55 Classe 2 SAW, ASTM A 1011 HSLAS- F Grau 50 GMAW, Acima de 1-1/2 Acima de 38 150 65 ASTM A 1018 HSLAS Grau 45 Classe 1 FCAW com 2-1/2 com 65 Grau 45 Classe 2 incl. incl. Grau 50 Classe 1 Grau 50 Classe 2 Acima de 2-1/2 Acima de 65 225 110 Grau 55 Classe 1 Grau 55 Classe 2 ASTM A 1018 HSLAS- F Grau 50 ASTM A 1018 SS Grau 30 Grau 33 Grau 36 Grau 40 API 5L Grau B Grau X42 API Spec. 2H Graus 42, 50 API 2MT1 Grau 50 API 2W Graus 42, 50, 50T API 2Y Graus 42, 50, 50T ABS Graus AH 32 & 36 DH 32 & 36 EH 32 & 36 ABS Graus A, B, D, CS, DS Grau E
  • 91.
    AWS D1.1/D1.1M:2010 3-PRE QUALIFICAÇÃO DE WPSS 71 Tabela 3.2 (continuação) Temperaturas Mìnimas Pré-qualificadas de Pré-aquecimento e de Interpasse (ver 3.5) C a t e g o r i a Especificações do Aço Processo de Soldagem Espessura da parte mais espessa no ponto de soldagem Temperaturas Mínimas de Pré-aquecimento e de Interpasse in nm F C ASTM A 572 Graus 60, 65 ASTM A 633 Grau E ASTM A 913b Graus 60, 65 1/8 a 3/4 3 a 20 50 10 ASTM A 710 Grau A, Classe 2 incl. incl. (≤2 in 5 mm ) ASTM A 710 Grau A, Classe 3 Acima de 3/4 Acima de 20 150 65 (>2 in [50 mm]) SMAW com com 1-1/2 com 38 C ASTM A 709c Grau HPS70W eletrodos com baixo nível de hidrogênio, incl. incl. ASTM A 852c SAW, GMAW, FCAW ASTM A 1018 HSLAS Grau 60, Classe 2 Acima de 1-1/2 Acima de 38 225 110 Grau 70, Classe 2 com 2-1/2 com 65 ASTM A 1018 HSLAS-F Grau 60, Classe 2 incl. incl. Grau 70, Classe 2 API 2W Grau 60 Acima de 2-1/2 Acima de 65 300 150 API 2Y Grau 60 API 5L Grau X52 SMAW, SAW, GMAW e FCAW com combinações de eletrodos ou eletrodo- fluxo capazes de Grau A depositar metal D ASTM A 710 (Todas as classes) de solda com um teor máximo de hidrogênio Todas as espessuras ≥ /8 in 3 mm 32a 0a ASTM A 913b Graus 50, 60, 65 difusível de 8 ml/100g (H8), quando testado de acordo com AWS A4.3. a Quando a temperatura do metal base estiver abaixo de 32 F [0 C], ele deve ser pré-aquecido a uma temperatura mínima de 70 F [20 C] e a temperatura mínima de interpasse deve ser mantida durante a soldagem. b As limitações do aporte de calor de 5.7 não devem ser aplicadas em ASTM A 913. c Para ASTM A 709 Grau HPS70W e ASTM A 852, as temperaturas máximas de pré-aquecimento e de interpasse não devem exceder 400 F [200 C], no caso de espessuras até 1-1/2 in [40 mm], inclusive, e 450 F [230 C], para espessuras maiores. Notas: 1. Para alteração dos requisitos de pré-aquecimento para SAW com eletrodos paralelos ou múltiplos, ver 3.5.2. 2. Ver 5.12.2 e 5.6 para requisitos de temperatura ambiente e do metal base. 3. ASTM A 570 e ASTM A 607 foram excluídas.
  • 92.
    AWS D1.1/D1.1M:2010 3-PRE QUALIFICAÇÃO DE WPSS 72 Tabela 3.3 (ver 3.7.3) Requisitos do Metal de Adição para Aplicações Expostas, Nuas de Aços Resistentes à Corrosão Atmosférica Processos Especificações AWS do Metal de Adição Eletrodos Aprovadosa SMAW A5.5 Todos os eletrodos que depositam metal de solda satisfazem uma análise B2L, C1, C1L, C2, C2L, C3 ou WX por A5.5. SAW A5.23 Todas as combinações de eletrodo-fluxo que depositam metal de solda com uma análise , Ni1, Ni2, Ni3, Ni4 ou WX por A5.23. FCAW A5.29 Todos os eletrodos que depositam metal de solda com uma análise B2L, Ni1, Ni2, Ni3, Ni4 ou WX por A5.29. GMAW A5.28 Todos os eletrodos que cumprem os requisitos de composição do metal de adição das análises B2L, Ga , Ni1, Ni2, Ni3 por A5.28. a O metal de solda depositado deve ter a mesma composição química que qualquer um dos metais de solda nessa tabela. Notas: 1. Os metais de adição devem cumprir os requisites da Tabela 3.1 além dos requisitos de composição listados acima. Pode ser feito uso do mesmo tipo de metal de adição, que tenha uma resistência à tração imediatamente superior, conforme relacionado nas especificações AWS de metal de adição. 2. Os eletrodos compósitos (metal revestido internamente) são designados da seguinte forma: SAW: Inseir a letra “C” entre as letras “E” e “X,” por exemplo, E7AX-ECXXX-Ni1. GMAW: Substituir a letra “S” pela letra “C” e omitir a letra “R,” por exemplo, E8 C-Ni1. Tabela 3.4 Tamanho de Solda Mínimo Pré- Qualificado de PJP (E) (ver 3.12.2.1) Espessura do Metal Base (T)a Tamanho Mínimo de Soldab in [mm] in mm 1/8 [3] a 3/16 [5] incl. 1/16 2 Acima de 3/16 [5] a 1/4 [6] incl. 1/8 3 Acima de 1/4 [6] a 1/2 [12] incl. 3/16 5 Acima de 1/2 [12] a 3/4 [20] incl. 1/4 6 Acima de 3/4 [20] a 1-1/2 [38] incl. 5/16 8 Acima de 1-1/2 [38] a 2-1/4 [57] incl. 3/8 10 Acima de 2-1/4 [57] a 6 [150] incl. 1/2 12 Acima de 6 [150] 5/8 16 a Para processos que não tenham baixo nível de hidrogênio, sem pré-aquecimento calculado em conformidade com 4.8.4, T é igual à espessura da parte mais grossa unida; devem ser utilizadas soldas em passe único. Para os processos com baixo nível de hidrogênio e os que não têm baixo nível de hidrogênio, estabelecidos para evitar trincas em conformidade com 4.8.4, T é igual à espessura da parte mais fina; não devem ser aplicados requisitos em passe único. b Exceto que o tamanho da solda não precisa ultrapassar a espessura da parte mais fina unida. Tabela 3.5 Aplicações do Detalhe de Junta para Conexões Tubulares Pré- qualificadas em T-, Y- e K- com CJP (ver 3.13.5 e Figura 3.7) Detalhe Intervalo Aplicável do Ângulo Diedro Local, Ψ A 180 a 135 B 150 a 50 C 75 a 30 40 a 15 Não pré-qualificadas para ângulos em chanfro menores que 30 D Notas: 1. O detalhe da junta aplicável (A, B, C ou D) para uma parte específica da conexão deve ser determinado pelo ângulo diedro local, Ψ, que muda em progressão contínua em torno do membro ramificado. 2. Os intervalos de ângulo e dimensionais dados no Detalhe A, B, C ou D incluem as os limites de tolerância máximos permitidos. 3. Ver Anexo K para a definição do ângulo diedro local.
  • 93.
    AWS D1.1/D1.1M:2010 3-PRE QUALIFICAÇÃO DE WPSS 73 Tabela 3.6 Dimensões de Juntas e Ângulos de Chanfro Pré-qualificados para Soldas em Chanfro com CJP em Conexões Tubulares em T-, Y- e K- Feitas por meio de SMAW, GMAW-S e FCAW (ver 3.13.5) Detalhe A  = 180 – 135 Detalhe B  = 150 – 50 Detalhe C  = 75 – 30 b Detalhe D  = 40 – 15 b Preparação final () máx. 90 a (Nota a) 10 mín. 45 para > 105 FCAW-S GMAW-S FCAW-S GMAW-S (Nota c) SMAWd FCAW-Ge SMAWd FCAW-Ge W máx.  FCAW-S 1/8 in [3 mm] 25 -40 SMAW 3/16 in [5 mm] 15 -25 (1) 1/4 in [6 mm] para >45 Abertura de ajuste ou raiz (R) 3/16 in 3/16 in 1/4 in 5/16 in [8 mm] máx [5 mm] [5 mm] [6 mm] para ≤45 GMAW-S 1/8 in [3 mm] 30 -40 FCAW-G 1/4 in [6 mm] 25 -30 (2) 3/8 in [10 mm] 20 -25 1/2 in [12 mm] 15 -20 mín. 1/16 in [2 mm] Sem mín. para >90 1/16 in [2 mm] Sem mín. para >120 1/16 in [2 mm] 1/16 in [2 mm] A junta incluiu o ângulo  90 60 para Ψ ≤ 105 40 ; se maior, usar Detalhe B máx mín. 45 37-1/2 ; se menor usar Detalhe C /2 Ψ ≥ tb ≥ tb /sin Ψ mas não precisa exceder 1.75 tb ≥ 2 tb Solda concluída ≥ tb para Ψ > 90 ≥ tb /sin Ψ para Ψ < tw L ≥ tb /sin Ψ mas não precisa exceder 1.75 tb A solda pode ser construída para atender o presente a De outro modo, conforme necessário para obter o  exigido. b Não pré-qualificado para ângulos de chanfro () menores que 30 . c Passes iniciais de soldagem back-up até que a largura do chanfro (W) seja suficiente para garantir uma boa soldagem; a largura necessária do chanfro para solda (W) fornecida pela soldagem back-up. d Esses detalhes de raiz são aplicados a SMAW e FCAW-S. e Esses detalhes de raiz são aplicados a GMAW-S e FCAW-G. Notas: 1. Para GMAW-S, ver 4.13.4.3. Esses detalhes não se destinam à GMAW (transferência de metal por spray). 2. Ver Figura 3.8 para um perfil-padrão mínimo (espessura limitada). 3. Ver Figura 3.9 para perfil alternativo de ponta-filete. 4. Ver Figura 3.10 para um melhor perfil (ver 2.21.6.6 e 2 21.6.7).
  • 94.
    AWS D1.1/D1.1M:2010 3-PRE QUALIFICAÇÃO DE WPSS 74 Tabela 3.7 Requisitos para WPS Pré-qualificadasf (ver 3.7) Variável Posição Tipo de Solda SMAW SAWd GMAW/ FCAWg Passe único Paralelo Múltiplo Diâmetro máximo do eletrodo Filetea 5/16 in [8,0 mm] 1/8 in [3,2 mm] Plana Chanfroa 1/4 in [6,4 mm] 1/4 in [6,4 mm] Passe de raiz 3/16 in [4,8 mm] Horizontal Filete 1/4 in [6,4 mm] 1/4 in [6,4 mm] 1/8 in [3,2 mm] Chanfro 3/16 in [4,8 mm] Requer Teste de Qualificação WPS Vertical Todos 3/16 in [4,8 mm]b 3/32 in [2,4 mm] Sobre- cabeça Todos 3/16 in [4,8 mm]b 5/64 in [2,0 mm] Corrente máxima Todas Filete Dentro da gama de operações indicadas pelo fabricante do metal de adição 1000A 1200A Ilimitado Dentro da gama de operações indicadas pelo fabricante do metal de adição Todas Passe de raiz de solda em chanfro com abertura 600A 700A Passe de raiz de solda em chanfro sem abertura 900A Passes de enchimento de solda em chanfro 1200A Passe de acabamento de solda em chanfro Ilimitado Espessura máxima do passe de raizd Plana Todos 3/8 in [10 mm] Ilimitado 3/8 in [10 mm] Horizontal 5/16 in [8 mm] 5/16 in [8 mm] Vertical 1/2 in [12 mm] 1/2 in [12 mm] Sobre- cabeça 5/16 in [8 mm] 5/16 in [8 mm] Espessura máxima do passe de enchimento Todas Todos 3/16 in [5 mm] 1/4 in [6 mm] Ilimitado 1/4 in [6 mm] Tamanho máximo de solda de filete em passe únicoc Plana Filete 3/8 in [10 mm] 5/16 in [8 mm] 5/16 in [8 mm] 1/2 in [12 mm] 1/2 in [12 mm] Horizontal 5/16 in [8 mm] 3/8 in [10 mm] Vertical 1/2 in [12 mm] 1/2 in [12 mm] Sobre- cabeça 5/16 in [8 mm] 5/16 in [8 mm] Passe único Paralelo Múltiplo Largura máxima de camada em passe único Todas (para GMAW/ FCAW) F & H (para SAW) Abertura de raiz > 1/2 in [12 mm] ou Camadas divididas Eletrodos lateralmente deslocados ou camadas divididas Camadas divididas Camadas divididas Qualquer camada de largura w Camadas divididas se w > 5/8 in [16 mm] Camadas divididas com eletrodos em tandem se w > 5/8 in [16 mm] Se w>1 in [25mm] camadas divididas (Nota e) a Exceto passes de raiz b 5/32 in [4,0 mm] para EXX14 e eletrodos com baixo nível de hidrogênio c Ver 3 7 3 para requisitos para soldagem sem pintura e expostas ASTM A 588 d Ver 3 7 2 para limitações de largura-para-profundidade e Nas posições P, H ou SC para camadas não tubulares, divididas quando a largura w > 1 [25 mm] f A área sombreada indica não-aplicabilidade g O processo GMAW-S não deve ser pré-qualificado
  • 95.
    AWS D1.1/D1.1M:2010 3-PRE QUALIFICAÇÃO DE WPSS 75 Tabela 3.8 Variáveis de WPSs Pré-qualificadas Variável de WPSs Pré-qualificadas Processos SMAW SAW GMAW FCAW Geral 1) Mudança no(s) processo(s) de soldagema X X X X 2) Mudança na(s) posição(ões) de soldagem X X X X Metal Base 3) Mudança no(s) número(s) do grupo do metal base (ver Tabela 3.1) X X X X 4) Mudança na categoria de preaquecimento do metal base (ver Tabela 3.2) X X X X Metal de Adição 5) Mudança na(s) classificação(ões) do eletrodo X X X X 6) Mudança na(s) classificação(ões) do eletrodo/fluxo X 7) Mudança no(s) diâmetro(s) nominal do eletrodo X X X X 8) Mudança no número de eletrodos X Parâmetros do Processo 9) Mudança na corrente elétrica > 10% de aumento ou redução > 10% de aumento ou redução > 10% de aumento ou redução 10) Mudança no tipo de corrente (ac ou dc) ou polaridade X X X X 11) Mudança no modo de transferência X 12) Mudança na tensão elétrica > 15% de aumento ou redução > 15% de aumento ou redução > 15% de aumento ou redução 13) Mudança na velocidade de alimentação do fio (se não houver corrente elétrica controlada) > 10% de aumento ou redução > 10% de aumento ou redução > 10% de aumento ou redução 14) Mudança na velocidade de deslocamento > 25% de aumento ou redução > 25% de aumento ou redução > 25% de aumento ou redução Gás de Proteção 15) Mudança na composição nominal do gás de proteção X X (apenas para FCAW-G) 16) Redução na taxa de fluxo do gás de proteção > 25% > 25% (apenas para FCAW-G) 17) Aumento na taxa de fluxo do gás > 50% > 50% (apenas para FCAW-G) (Continua)
  • 97.
    AWS D1.1/D1.1M:2010 3-PRE QUALIFICAÇÃO DE WPSS 77 Figura 3.1— Nó de soldagem em que a profundidade e a largura excedem a largura da face da solda (ver 3.7.2) MIN L PARA E = 0,7 t E = t E = 1,07 t Notas: 1. t = espessura da parte mais fina. 2. L = tamanho mínimo (ver 2.25.1.3, que pode requerer um tamanho de solda aumentado, no caso de outras combinações que não sejam um metal base de 36 ksi [250 MPa] e eletrodos de 70 ksi [485 MPa]). 3. Abertura de raiz de 0 in para 3/16 in [5 mm] (ver 5 22). 4. Não pré-qualificado para φ < 30°. Para φ < 60°, as dimensões da perda de Z na Tabela 2 9 são aplicáveis. Ver tabela 4.10 para os requisitos do posto para teste de qualificação de soldador. 5. Ver 2.24.1.2 para limitações em β = d/D. 6. Ψ = ângulo diedro. CALCANHAR < 60 1,5 t 1,5 t MAIOR QUE 1,5 t OU 1,4 t + Z LATERAL ≤ 100 1 t 1,4 t 1,5 t LATERAL 100-110 1,1 t 1,6 t 1,75 t LATERAL 110-120 1,1 t 1,6 t 1,75 t PONTA > 120 BISEL 1 t BISEL 1,4 t BISEL COMPLETO CHANFRO DE 60- 90 Figura 3.2—Juntas tubulares pré-qualificadas de soldagem de filete feitas por meio de SMAW, GMAW e FCAW (ver 3.9.2)
  • 98.
    AWS D1.1/D1.1M:2010 3-PRE QUALIFICAÇÃO DE WPSS 78 Legenda para as figuras 3.3 e 3.4 Símbolos para tipos de juntas B – junta de topo C – junta de ângulo T – junta em T BC – junta de topo ou de ângulo TC – junta em T ou de ângulo BTC – junta de topo, em T ou de ângulo Processos de soldagem SMAW – Soldagem a Arco de Metal Revestido GMAW – Soldagem Mig/Mag FCAW – Soldagem a Arco com Arame Tubular SAW – Soldagem a Arco Submerso Posições de soldagem F – plana H – horizontal V – vertical OH – sobre-cabeça Símbolos para espessura e penetração do metal base P – PJP L – espessura limitada – CJP U – espessura ilimitada – CJP Símbolos para tipos de solda 1 – chanfro quadrado 2 – chanfro em V simples 3 – chanfro em X 4 – chanfro em bisel simples 5 – chanfro em bisel duplo 6 – chanfro em U 7 – chanfro em duplo U 8 – chanfro em meio J 9 – chanfro em J duplo 10 – chanfro em bisel curvado 11 – chanfro em V curvado Dimensões R = Abertura de raiz ,  = Ângulo de abertura do chanfro f = Face de raiz r = Raio de chanfro em meio J ou em U S, S1, S2 = Solda em Chanfro com PJP Profundidade de chanfro E, E1, E2 = Solda em Chanfro com PJP Tamanhos correspondendo a S, S1, S2, respectivamente Símbolos para processos de soldagem, se não for SMAW S – SAW G – GMAW F – FCAW Denominação de juntas As letras minúsculas, por exemplo, a, b, c etc., são usadas para diferenciar entre as juntas que, de outra forma, teriam uma mesma denominação. Notas para as figuras 3.3 e 3.4 a Não pré-qualificado para GMAW-S nem GTAW. b A junta deve ser soldada apenas de um lado. c A aplicação cíclica de cargas impõe restrições quanto ao uso desse detalhe no caso de juntas de topo em posição plana (ver 2.18.2). d Raiz com goivagem por trás para sondar o metal antes de soldar o segundo lado. e Juntas detalhadas SMAW podem ser utilizadas para os processos GMAW e FCAW pré-qualificados (exceto GMAW-S). f Tamanho mínimo de solda (E) como mostrado na tabela 3.4. S, como especificado nos desenhos. g Se as soldas de filete são usadas em estruturas estaticamente carregadas para reforçar soldas em chanfro em juntas em T e de ângulo, estas devem ser igual a T1/4, mas não precisa exceder 3/8 in [10 mm]. As soldas em chanfro em juntas em T e de ângulo de estruturas ciclicamente carregadas devem ser reforçadas com soldas de filete igual a T1/4, não precisa exceder 3/8 in [10 mm]. h As soldas em chanfro duplo podem ter chanfros com profundidade desigual, mas a profundidade do chanfro menos pronunciado não deve ser menor que um quarto de espessura da parte mais fina unida. i As soldas em chanfro duplo podem ter chanfros com profundidade desigual, desde que estes estejam em conformidade com os limites da Nota f. Também o tamanho de solda (E) aplica-se individualmente em cada chanfro. j A orientação de ambos os membros nas juntas pode variar de 135 a 180 nas juntas de topo, ou de 45 a 135 nas juntas de ângulo, ou ainda de 45 a 90 nas juntas em T. k No caso das juntas de ângulo, a preparação do chanfro externo pode ser em um ou ambos os membros, desde que a configuração básica do chanfro não seja alterada e a distância adequada da aresta seja mantida para dar suporte às operações de soldagem sem fusão excessiva da aresta. l O tamanho de solda (E) deve se basear em juntas soldadas niveladas. m No caso de soldas de chanfro em V curvado e soldas de chanfro em bisel curvado para seções tubulares retangulares, o raio r deve ser duas vezes a espessura da parede. n No caso de soldas de chanfro em V curvado para superfícies com diferentes raios r, deve ser utilizado o menor
  • 99.
    AWS D1.1/D1.1M:2010 3-PRE QUALIFICAÇÃO DE WPSS 79 Ver nota na página 77 Solda em chanfro quadrado (1) Junta de topo (B) Process o de soldage m Denominaç ão da junta Espessura do Metal Base (U = ilimitado) Preparação em Chanfro Posições de soldagem permitidas Tamanho de solda (E) Nota s T1 T2 Abertura de raiz Tolerâncias Como detalhado (ver 3.12.3) Como ajustado (ver 3.12.3) SMAW B-P1a 1/8 ― R = 0 a 1/16 + 1/16, –0  1/16 Todas T1 – 1/32 b B-P1c 1/4 máx. ― R = T1 mín. 2 + 1/16, –0  1/16 Todas T1 2 b GMAW FCAW B-P1a-GF 1/8 ― R = 0 a 1/16 + 1/16, –0  1/16 Todas T1 – 1/32 b, e B-P1c-GF 1/4 máx. ― R = T1 mín. 2 + 1/16, –0  1/16 Todas T1 2 b, e Solda em chanfro quadrado (1) Junta de topo (B) E1 + E2 NÃO DEVE EXCEDER Processo de soldagem Denominação da junta Espessura do Metal Base (U = ilimitado) Preparação em Chanfro Posições de soldagem permitidas Tamanho de solda (E1 + E2) Notas T1 T2 Abertura de raiz Tolerâncias Como detalhado (ver 3.12.3) Como ajustado (ver 3.12.3) SMAW B-P1b 1/4 máx. ― R = T1 2 + 1/16, –0  1/16 Todas 3T1 4 GMAW FCAW B-P1b-GF 1/4 máx. ― R = T1 2 + 1/16, –0  1/16 Todas 3T1 4 e Figura 3.3 - Detalhes de Junta de Solda em Chanfro pré-qualificado de PJP (ver 3.12) (Dimensões em polegadas (in)
  • 100.
    AWS D1.1/D1.1M:2010 3-PRE QUALIFICAÇÃO DE WPSS 80 Ver nota na página 77 Junta de ângulo (C) Solda em chanfro em V simples (2) Junta de topo (B) Processo de soldagem Denominação da junta Espessura do Metal Base (U = ilimitado) Preparação em Chanfro Posições de soldagem permitidas Tamanho de solda (E) Notas T1 T2 Abertura de raiz Face de raiz Ângulo de abertura do chanfro Tolerâncias Como detalhado (ver 3.12.3) Como ajustado (ver 3.12.3) SMAW BC-P2 1/4 mín. U R = 0 f = 1/32 mín.  = 60 + 1/16, –0 +U, –0 +10 , –0 +1/8, ±1/16 1/16 +10 , –5 Todas S b, e, f, j GMAW FCAW BC-P2-GF 1/4 mín. U R = 0 f = 1/8 mín.  = 60 + 1/16, –0 +U, –0 +10 , –0 +1/8, ±1/16 1/16 +10 , –5 Todas S a, b, f, j SAW BC-P2-S 7/16 mín. U R = 0 f = 1/4 mín.  = 60 0 +U, –0 +10 , –0 + 1/16, –0 1/16 +10 , –5 p S b, f, j Solda em chanfro em X (3) Junta de topo (B) Processo de soldagem Denominação da junta Espessura do Metal Base (U = ilimitado) Preparação em Chanfro Posições de soldagem permitidas Tamanho de solda (E1 + E2) Notas T1 T2 Abertura de raiz Face de raiz Ângulo de abertura do chanfro Tolerâncias Como detalhado (ver 3.12.3) Como ajustado (ver 3.12.3) SMAW B-P3 1/2 mín. ― R = 0 f = 1/8 mín.  = 60 + 1/16, –0 +U, –0 +10 , –0 +1/8, ±1/16 1/16 +10 , –5 Todas S1 + S2 e, f, i, j GMAW FCAW B-P3-GF 1/2 mín. ― R = 0 f = 1/8 mín.  = 60 + 1/16, –0 +U, –0 +10 , –0 +1/8, ±1/16 1/16 +10 , –5 Todas S1 + S2 a, f, i, j SAW B-P3-S 3/4 mín. ― R = 0 f = 1/4 mín.  = 60 0 +U, –0 +10 , –0 + 1/16, –0 1/16 +10 , –5 P S1 + S2 f, i, j Figura 3.3 (Continuação)- Detalhes de Junta de Solda em Chanfro pré- qualificado de PJP (ver 3.12) (Dimensões em polegadas (in)
  • 101.
    AWS D1.1/D1.1M:2010 3-PRE QUALIFICAÇÃO DE WPSS Ver nota na página 77 Solda em chanfro em bisel simples (4) Junta de topo (B) Junta em T (T) Junta de ângulo (C) Processo de soldagem Denominação da junta Espessura do Metal Base (U = ilimitado) Preparação em Chanfro Posições de soldagem permitidas Tamanho de solda (E) Notas T1 T2 Abertura de raiz Face de raiz Ângulo de abertura do chanfro Tolerâncias Como detalhado (ver 3.12.3) Como ajustado (ver 3.12.3) SMAW BTC-P4 U U R = 0 f = 1/8 mín.  = 45 + 1/16, –0 +U, –0 +10 , –0 +1/8, ±1/16 1/16 +10 , –5 Todas S–1/8 b, e, f, g, j, k GMAW FCAW BTC-P4-GF 1/4 mín. U R = 0 f = 1/8 mín.  = 45 + 1/16, –0 +U, –0 +10 , –0 +1/8, ±1/16 1/16 +10 , –5 P, H S a, b, f, g, j, k V, SC S–1/8 SAW TC-P4-S 7/16 mín. U R = 0 f = 1/4 mín.  = 60 0 +U, –0 +10 , –0 + 1/16, –0 1/16 +10 , –5 P S b, f, g, j, k Solda em chanfro em bisel duplo (5) Junta de topo (B) Junta em T (T) Junta de ângulo (C) Processo de soldagem Denominação da junta Espessura do Metal Base (U = ilimitado) Preparação em Chanfro Posições de soldagem permitidas Tamanho de solda (E1 + E2) Notas T1 T2 Abertura de raiz Face de raiz Ângulo de abertura do chanfro Tolerâncias Como detalhado (ver 3.12.3) Como ajustado (ver 3.12.3) SMAW BTC-P5 5/16 mín. U R = 0 f = 1/8 mín.  = 45 + 1/16, –0 +U, –0 +10 , –0 +1/8, –1/16 1/16 +10 , –5 Todas S1 + S2 –1/4 e, f, g, i, j, k GMAW FCAW BTC-P5-GF 1/2 mín. U R = 0 f = 1/8 mín.  = 45 + 1/16, –0 +U, –0 +10 , –0 +1/8, –1/16 1/16 +10 , –5 P, H S1 + S2 a, f, g, i, j, k V, SC S1 + S2 –1/4 SAW TC-P5-S 3/4 mín. U R = 0 f = 1/4 mín.  = 60 0 +U, –0 +10 , –0 + 1/16, –0 1/16 +10 , –5 P S1 + S2 f, g, i, j, k Figura 3.3 (continuação) - Detalhes de Junta de Solda em Chanfro pré-qualificado de PJP (ver 3.12) (Dimensões em polegadas (in)
  • 102.
    AWS D1.1/D1.1M:2010 3-PRE QUALIFICAÇÃO DE WPSS 82 Ver nota na página 77 Solda em chanfro em U (6) Junta de topo (B) Junta de ângulo (C) Processo de soldagem Denominação da junta Espessura do Metal Base (U = ilimitado) Preparação em Chanfro Posições de soldagem permitidas Tamanh o de solda (E) Notas T1 T2 Abertura de raiz Face de raiz Raio de bisel Ângulo de abertura do chanfro Tolerâncias Como detalhado (ver 3.12.3) Como ajustado (ver 3 12.3) SMAW BC-P6 1/4 mín. U R = 0 f = 1/32 mín. r = 1/4  = 45 + 1/16, –0 +U, –0 +1/4, –0 +10 , –0 +1/8, –1/16 1/16 1/16 +10 , –5 Todas S b, e, f, j GMAW FCAW BC-P6-GF 1/4 mín. U R = 0 f = 1/8 mín. r = 1/4  = 20 + 1/16, –0 +U, –0 +1/4, –0 +10 , –0 +1/8, –1/16 1/16 1/16 +10 , –5 Todas S a, b, f, j SAW BC-P6-S 7/16 mín. U R = 0 f = 1/4 mín. r = 1/4  = 20 0 +U, –0 +1/4, –0 +10 , –0 + 1/16, –0 1/16 1/16 +10 , –5 P S b, f, j Solda em chanfro em duplo U (7) Junta de topo (B) Processo de soldagem Denominaçã o da junta Espessura do Metal Base (U = ilimitado) Preparação em Chanfro Posições de soldagem permitidas Tamanho de solda (E1 + E2) Notas T1 T2 Abertura de raiz Face de raiz Raio de bisel Ângulo de abertura do chanfro Tolerâncias Como detalhado (ver 3 12.3) Como ajustado (ver 3 12.3) SMAW B-P7 1/2 mín.  R = 0 f = 1/8 mín. r = 1/4  = 45 + 1/16, –0 +U, –0 +1/4, –0 +10 , –0 +1/8, –1/16 1/16 1/16 +10 , –5 Todas S1 + S2 e, f, i, j GMAW FCAW B-P7-GF 1/2 mín.  R = 0 f = 1/8 mín. r = 1/4  = 20 + 1/16, –0 +U, –0 +1/4, –0 +10 , –0 +1/8, –1/16 1/16 1/16 +10 , –5 Todas S1 + S2 a, f, i, j SAW B-P7-S 3/4 mín.  R = 0 f = 1/4 mín. r = 1/4  = 20 0 +U, –0 +1/4, –0 +10 , –0 + 1/16, –0 1/16 1/16 +10 , –5 P S1 + S2 f, i, j Figura 3.3 (continuação) - Detalhes de Junta de Solda em Chanfro pré- qualificado de PJP (ver 3.12) (Dimensões em polegadas (in)
  • 103.
    AWS D1.1/D1.1M:2010 3-PRE QUALIFICAÇÃO DE WPSS 83 Ver nota na página 77 Solda em chanfro em J (8) Junta de topo (B) Junta em T (T) Junta de ângulo (C) Processo de soldagem Denominaçã o da junta Espessura do Metal Base (U = ilimitado) Preparação em Chanfro Posições de soldagem permitidas Tamanho de solda (E) Notas T1 T2 Abertura de raiz Face de raiz Raio de bisel Ângulo de abertura do chanfro Tolerâncias Como detalhado (ver 3.12.3) Como ajustado (ver 3.12.3) SMAW B-P8 1/4 mín.  R = 0 f = 1/8 mín. r = 3/8  = 30 + 1/16, –0 +U, –0 +1/4, –0 +10 , –0 +1/8, –1/16 1/16 1/16 +10 , –5 Todas S e, f, g, j, k TC-P8 1/4 mín. U R = 0 f = 1/8 mín. r = 3/8 oc = 30  ic = 45  + 1/16, –0 +U, –0 +1/4, –0 +10 , –0 +10 , –0 +1/8, –1/16 1/16 1/16 +10 , –5 +10 , –5 Todas S e, f, g, j, k GMAW FCAW B-P8-GF 1/4 mín.  R = 0 f = 1/8 mín. r = 3/8  = 30 + 1/16, –0 +U, –0 +1/4, –0 +10 , –0 +1/8, –1/16 1/16 1/16 +10 , –5 Todas S a, f, g, j, k TC-P8-GF 1/4 mín. U R = 0 f = 1/8 mín. r = 3/8 oc = 30  ic = 45  + 1/16, –0 +U, –0 +1/4, –0 +10 , –0 +10 , –0 +1/8, –1/16 1/16 1/16 +10 , –5 +10 , –5 Todas S a, f, g, j, k SAW B-P8-S 7/16 mín.  R = 0 f = 1/4 mín. r = 1/2  = 20 0 +U, –0 +1/4, –0 +10 , –0 + 1/16, –0 1/16 1/16 +10 , –5 P S f, g, j, k TC-P8-S 7/16 mín. U R = 0 f = 1/4 mín. r = 1/2  = 20  ic = 45  0 +U, –0 +1/4, –0 +10 , –0 +10 , –0 + 1/16, –0 1/16 1/16 +10 , –5 +10 , –5 P S f, g, j, k  oc = Ângulo de abertura do chanfro do canto externo.  ic = Ângulo de abertura do chanfro do canto interno. Figura 3.3 (continuação)—Detalhes de Junta de Solda em Chanfro pré- qualificado de PJP (ver 3.12) (Dimensões em polegadas (in)
  • 104.
    AWS D1.1/D1.1M:2010 3-PRE QUALIFICAÇÃO DE WPSS 84 Ver nota na página 77 Solda em chanfro em J duplo (9) Junta de topo (B) Junta em T (T) Junta de ângulo (C) Processo de soldagem Denominação da junta Espessura do Metal Base (U = ilimitado) Preparação em Chanfro Posições de soldagem permitidas Tamanho de solda (E1 + E2) Notas T1 T2 Abertura de raiz Face de raiz Raio de bisel Ângulo de abertura do chanfro Tolerâncias Como detalhado (ver 3.12.3) Como ajustado (ver 3.12.3) SMAW B-P9 1/2 mín.  R = 0 f = 1/8 mín. r = 3/8  = 30 + 1/16, –0 +U, –0 +1/4, –0 +10 , –0 +1/8, –1/16 1/16 1/16 +10 , –5 Todas S1 + S2 e, f, g, i, j, k TC-P9 1/2 mín. U R = 0 f = 1/8 mín. r = 3/8 oc = 30  ic = 45  + 1/16, –0 +U, –0 +1/4, –0 +10 , –0 +10 , –0 +1/8, –1/16, 1/16 1/16 +10 , –5 +10 , –5 Todas S1 + S2 e, f, g, i, j, k GMAW FCAW B-P9-GF 1/2 mín.  R = 0 f = 1/8 mín. r = 3/8  = 30 + 1/16, –0 +U, –0 +1/4, –0 +10 , –0 +1/8, –1/16 1/16 1/16 +10 , –5 Todas S1 + S2 a, f, g, i, j, k TC-P9-GF 1/2 mín. U R = 0 f = 1/8 mín. r = 3/8 oc = 30  ic = 45  0 +U, –0 +1/4, –0 +10 , –0 +10 , –0 + 1/16, –0 1/16 1/16 +10 , –5 +10 , –5 Todas S1 + S2 a, f, g, i, j, k SAW B-P9-S 3/4 mín.  R = 0 f = 1/4 mín. r = 1/2  = 20 0 +U, –0 +1/4, –0 +10 , –0 + 1/16, –0 1/16 1/16 +10 , –5 P S1 + S2 f, g, i, j, k TC-P9-S 3/4 mín. U R = 0 f = 1/4 mín. r = 1/2 oc = 20  ic = 45  0 +U, –0 +1/4, –0 +10 , –0 +10 , –0 + 1/16, –0 1/16 1/16 +10 , –5 +10 , –5 P S1 + S2 f, g, i, j, k  oc = Ângulo de abertura do chanfro do canto externo.  ic = Ângulo de abertura do chanfro do canto interno. Figura 3.3 (continuação) - Detalhes de Junta de Solda em Chanfro pré- qualificado de PJP (ver 3.12) (Dimensões em polegadas (in)
  • 105.
    AWS D1.1/D1.1M:2010 3-PRE QUALIFICAÇÃO DE WPSS 85 Ver notas acima 77 Solda em chanfro em bisel curvado (10) Junta de topo (B) Junta em T (T) Junta de ângulo (C) Processo de soldagem Denominação da junta Espessura do Metal Base (U = ilimitado) Preparação em Chanfro Posições de soldagem permitidas Tamanho de solda (E) Notas T1 T2 T3 Abertura de raiz Face de raiz Raio de curvatura Tolerâncias Como detalhado (ver 3.12.3) Como ajustado (ver 3.12.3) SMAW FCAW-S BTC-P10 3/16 mín. U T1 mín. R = 0 f = 3/16 mín. r = 3T1mín. 2 + 1/16, –0 +U, –0 +U, –0 +1/8, –1/16 +U, –1/16 +U, –0 Todas 5/16 r e, g, j, l GMAW FCAW-G BTC-P10-GF 3/16 mín. U T1 mín. R = 0 f = 3/16 mín. r = 3T1mín. 2 + 1/16, –0 +U, –0 +U, –0 +1/8, –1/16 +U, –1/16 +U, –0 Todas 5/8 r a, g, j, l, m SAW B-P10-S 1/2 mín. N/A 1/2 mín. R = 0 f = 1/2 mín. r = 3T1mín. 2 0 +U, –0 +U, –0 + 1/16, –0 +U, –1/16 +U, –0 P 5/16 r g, j, l, m Figura 3.3 (continuação)—Detalhes de Junta de Solda em Chanfro pré-qualificado de PJP. (ver 3.12) (Dimensões em polegadas (in)
  • 106.
    AWS D1.1/D1.1M:2010 3-PRE QUALIFICAÇÃO DE WPSS 86 Ver notas acima 77 Solda em chanfro em V curvado (11) Junta de topo (B) Processo de soldagem Denominação da junta Espessura do Metal Base (U = ilimitado) Preparação em Chanfro Posições de soldagem permitidas Tamanho de solda (E) Notas T1 T2 Abertura de raiz Face de raiz Raio de curvatura Tolerâncias Como detalhado (ver 3.12.3) Como ajustado (ver 3.12.3) SMAW FCAW-S B-P11 3/16 mín. T1 mín. R = 0 f = 3/16 mín. r = 3T1mín. 2 + 1/16, –0 +U, –0 +U, –0 +1/8, –1/16 +U, –1/16 +U, –0 Todas 5/8 r e, j, l, m, n GMAW FCAW-G B-P11-GF 3/16 mín. T1 mín. R = 0 f = 3/16 mín. r = 3T1mín. 2 + 1/16, –0 +U, –0 +U, –0 +1/8, –1/16 +U, –1/16 +U, –0 Todas 3/4 r a, j, l, m, n SAW B-P11-S 1/2 mín. T1 mín. R = 0 f = 1/2 mín. r = 3T1mín. 2 0 +U, –0 +U, –0 + 1/16, –0 +U, –1/16 +U, –0 P 1/2 r j, l, m, n Figura 3.3 (continuação)—Detalhes de Junta de Solda em Chanfro pré-qualificado de PJP (ver 3.12) (Dimensões em polegadas (in)
  • 107.
    AWS D1.1/D1.1M:2010 3-PRE QUALIFICAÇÃO DE WPSS 87 Ver notas acima 77 Solda em chanfro quadrado (1) Junta de topo (B) TODAS AS DIMENSÕES EM mm Processo de soldagem Denominação da junta Espessura do Metal Base (U = ilimitado) Preparação em Chanfro Posições de soldagem permitidas Tamanho de solda (E) Notas T1 T2 Abertura de raiz Tolerâncias Como detalhado (ver 3.12.3) Como ajustado (ver 3.12.3) SMAW B-P1a 3 ― R = 0 a 2 + 2, –0  2 Todas T1 – 1 b B-P1c 6 máx. ― R = T1 mín. 2 + 2, –0  2 Todas T1 2 b GMAW FCAW B-P1a-GF 3 ― R = 0 a 2 + 2, –0  2 Todas T1 – 1 b, e B-P1c-GF 6 máx. ― R = T1 mín. 2 + 2, –0  2 Todas T1 2 b, e Solda em chanfro quadrado (1) Junta de topo (B) E1 + E2 NÃO DEVE EXCEDER TODAS AS DIMENSÕES EM mm Processo de soldagem Denominação da junta Espessura do Metal Base (U = ilimitado) Preparação em Chanfro Posições de soldagem permitidas Tamanho de solda (E1 + E2) Notas T1 T2 Abertura de raiz Tolerâncias Como detalhado (ver 3.12.3) Como ajustado (ver 3.12.3) SMAW B-P1b 6 máx. ― R = T1 2 + 2, –0  2 Todas 3T1 4 GMAW FCAW B-P1b-GF 6 máx. ― R = T1 2 + 2, –0  2 Todas 3T1 4 e Figura 3.3 (continuação) - Detalhes de Junta de Solda em Chanfro pré-qualificado de PJP (ver 3.12) (Dimensões em milímetros)
  • 108.
    AWS D1.1/D1.1M:2010 3-PRE QUALIFICAÇÃO DE WPSS 88 Ver notas acima 77 Solda de chanfro em V simples (2) Junta de topo (B) Junta de ângulo (C) TODAS AS DIMENSÕES EM mm Processo de soldagem Denominação da junta Espessura do Metal Base (U = ilimitado) Preparação em Chanfro Posições de soldagem permitidas Tamanho de solda (E) Notas T1 T2 Abertura de raiz Face de raiz Ângulo de abertura do chanfro Tolerâncias Como detalhado (ver 3.12.3) Como ajustado (ver 3.12.3) SMAW BC-P2 6 mín. U R = 0 f = 1 mín.  = 60 + 2, –0 +U, –0 +10 , –0 +3, –2 2 +10 , –5 Todas S b, e, f, j GMAW FCAW BC-P2-GF 6 mín. U R = 0 f = 3 mín.  = 60 + 2, –0 +U, –0 +10 , –0 +3, –2 2 +10 , –5 Todas S a, b, f, j SAW BC-P2-S 11 mín. U R = 0 f = 6 mín.  = 60 0 +U, –0 +10 , –0 +3, –2 2 +10 , –5 P S b, f, j Solda de chanfro em X (3) Junta de topo (B) TODAS AS DIMENSÕES EM mm Processo de soldagem Denominação da junta Espessura do Metal Base (U = ilimitado) Preparação em Chanfro Posições de soldagem permitidas Tamanho de solda (E1 + E2) Notas T1 T2 Abertura de raiz Face de raiz Ângulo de abertura do chanfro Tolerâncias Como detalhado (ver 3.12.3) Como ajustado (ver 3 12.3) SMAW B-P3 12 mín. ― R = 0 f = 3 mín.  = 60 + 2, –0 +U, –0 +10 , –0 +3, –2 2 +10 , –5 Todas S1 + S2 e, f, i, j GMAW FCAW B-P3-GF 12 mín. ― R = 0 f = 3 mín.  = 60 + 2, –0 +U, –0 +10 , –0 +3, –2 2 +10 , –5 Todas S1 + S2 a, f, i, j SAW B-P3-S 20 mín. ― R = 0 f = 6 mín.  = 60 0 +U, –0 +10 , –0 +2, –0 2 +10 , –5 P S1 + S2 f, i, j Figura 3.3 (continuação) - Detalhes de Junta de Solda em Chanfro pré-qualificado de PJP (ver 3.12) (Dimensões em milímetros)
  • 109.
    AWS D1.1/D1.1M:2010 3-PRE QUALIFICAÇÃO DE WPSS Ver notas acima (na pagina) Solda de chanfro em bisel simples (4) Junta de topo (B) Junta em T (T) Junta de ângulo (C) TODAS AS DIMENSÕES EM mm Processo de soldagem Denominação da junta Espessura do Metal Base (U = ilimitado) Preparação em Chanfro Posições de soldagem permitidas Tamanho de solda (E) Notas T1 T2 Abertura de raiz Face de raiz Ângulo de abertura do chanfro Tolerâncias Como detalhado (ver 3.12.3) Como ajustado (ver 3.12.3) SMAW BTC-P4 U U R = 0 f = 3 mín.  = 45 + 2, –0 +U, –0 +10 , –0 +3, –2 2 +10 , –5 Todas S–3 b, e, f, g, j, k GMAW FCAW BTC-P4-GF 6 mín. U R = 0 f = 3 mín.  = 45 + 2, –0 +U, –0 +10 , –0 +3, –2 2 +10 , –5 P, H S a, b, f, g, j, k V, SC S–3 SAW TC-P4-S 11 mín. U R = 0 f = 6 mín.  = 60 0 +U, –0 +10 , –0 +2, –0 2 +10 , –5 P S b, f, g, j, k Solda de chanfro em bisel duplo (5) Junta de topo (B) Junta em T (T) Junta de ângulo (C) TODAS AS DIMENSÕES EM mm Processo de soldagem Denominação da junta Espessura do Metal Base (U = ilimitado) Preparação em Chanfro Posições de soldagem permitidas Tamanho de solda (E1 + E2) Notas T1 T2 Abertura de raiz Face de raiz Ângulo de abertura do chanfro Tolerâncias Como detalhado (ver 3.12.3) Como ajustado (ver 3.12.3) SMAW BTC-P5 8 mín. U R = 0 f = 3 mín.  = 45 + 2, –0 +U, –0 +10 , –0 +3, –2 2 +10 , –5 Todas S1 + S2 –6 e, f, g, i, j, k GMAW FCAW BTC-P5-GF 12 mín. U R = 0 f = 3 mín.  = 45 + 2, –0 +U, –0 +10 , –0 +3, –2 2 +10 , –5 P, H S1 + S2 a, f, g, i, j, k V, SC S1 + S2 –6 SAW TC-P5-S 20 mín. U R = 0 f = 6 mín.  = 60 0 +U, –0 +10 , –0 +2, –0 2 +10 , –5 P S1 + S2 f, g, i, j, k Figura 3.3 (continuação) - Detalhes de Junta de Solda em Chanfro pré-qualificado de PJP (ver 3.12) (Dimensões em milímetros)
  • 110.
    AWS D1.1/D1.1M:2010 3-PRE QUALIFICAÇÃO DE WPSS Ver notas acima 77 Solda de chanfro em U (6) Junta de topo (B) Junta de ângulo (C) TODAS AS DIMENSÕES EM mm Processo de soldagem Denominação da junta Espessura do Metal Base (U = ilimitado) Preparação em Chanfro Posições de soldagem permitidas Tamanho de solda (E) Notas T1 T2 Abertura de raiz Face de raiz Raio de bisel Ângulo de abertura do chanfro Tolerâncias Como detalhado (ver 3.12.3) Como ajustado (ver 3.12.3) SMAW BC-P6 6 mín. U R = 0 f = 1 mín. r = 6  = 45 + 2, –0 +U, –0 +6, –0 +10 , –0 +3, –2 2 2 +10 , –5 Todas S b, e, f, j GMAW FCAW BC-P6-GF 6 mín. U R = 0 f = 3 mín. r = 6  = 20 + 2, –0 +U, –0 +6, –0 +10 , –0 +3, –2 2 2 +10 , –5 Todas S a, b, f, j SAW BC-P6-S 11 mín. U R = 0 f = 6 mín. r = 6  = 20 0 +U, –0 +6, –0 +10 , –0 + 2, –0 2 2 +10 , –5 P S b, f, j Solda de chanfro em duplo U (7) Junta de topo (B) TODAS AS DIMENSÕES EM mm Processo de soldagem Denominação da junta Espessura do Metal Base (U = ilimitado) Preparação em Chanfro Posições de soldagem permitidas Tamanho de solda (E1 + E2) Notas T1 T2 Abertura de raiz Face de raiz Raio de bisel Ângulo de abertura do chanfro Tolerâncias Como detalhado (ver 3.12.3) Como ajustado (ver 3.12.3) SMAW B-P7 12 mín.  R = 0 f = 3 mín. r = 6  = 45 + 2, –0 +U, –0 +6, –0 +10 , –0 +3, –2 2 2 +10 , –5 Todas S1 + S2 e, f, i, j GMAW FCAW B-P7-GF 12 mín.  R = 0 f = 3 mín. r = 6  = 20 + 2, –0 +U, –0 +6, –0 +10 , –0 +3, –2 2 2 +10 , –5 Todas S1 + S2 a, f, i, j SAW B-P7-S 20 mín.  R = 0 f = 6 mín. r = 6  = 20 0 +U, –0 +6, –0 +10 , –0 + 2, –0 2 2 +10 , –5 P S1 + S2 f, i, j Figura 3.3 (continuação) - Detalhes de Junta de Solda em Chanfro pré-qualificado de PJP (ver 3.12) (Dimensões em milímetros)
  • 111.
    AWS D1.1/D1.1M:2010 3-PRE QUALIFICAÇÃO DE WPSS 91 Solda de chanfro em J (8) Junta de topo (B) Junta em T (T) Junta de ângulo (C) TODAS AS DIMENSÕES EM mm Processo de soldagem Denominação da junta Espessura do Metal Base (U = ilimitado) Preparação em Chanfro Posições de soldagem permitidas Tamanho de solda (E) Notas T1 T2 Abertura de raiz Face de raiz Raio de bisel Ângulo de abertura do chanfro Tolerâncias Como detalhado (ver 3.12.3) Como ajustado (ver 3.12.3) SMAW B-P8 6 mín.  R = 0 f = 3 mín. r = 10  = 30 + 2, –0 +U, –0 +6, –0 +10 , –0 +3, –2 2 2 +10 , –5 Todas S e, f, g, j, k TC-P8 6 mín. U R = 0 f = 3 mín. r = 10 oc = 30  ic = 45  + 2, –0 +U, –0 +6, –0 +10 , –0 +10 , –0 +3, –2 2 2 +10 , –5 +10 , –5 Todas S e, f, g, j, k GMAW FCAW B-P8-GF 6 mín.  R = 0 f = 3 mín. r = 10  = 30 + 2, –0 +U, –0 +6, –0 +10 , –0 +3, –2 2 2 +10 , –5 Todas S a, f, g, j, k TC-P8-GF 6 mín. U R = 0 f = 3 mín. r = 10 oc = 30  ic = 45  + 2, –0 +U, –0 +6, –0 +10 , –0 +10 , –0 +3, –2 2 2 +10 , –5 +10 , –5 Todas S a, f, g, j, k SAW B-P8-S 11 mín.  R = 0 f = 6 mín. r = 12  = 20 0 +U, –0 +6, –0 +10 , –0 + 2, –0 2 2 +10 , –5 P S f, g, j, k TC-P8-S 11 mín. U R = 0 f = 6 mín. r = 12  = 20  ic = 45  0 +U, –0 +6, –0 +10 , –0 +10 , –0 + 2, –0 2 2 +10 , –5 +10 , –5 P S f, g, j, k  oc = Ângulo de abertura do chanfro do canto externo.  ic = Ângulo de abertura do chanfro do canto interno. Figura 3.3 (continuação) - Detalhes de Junta de Solda em Chanfro pré-qualificado de PJP (ver 3.12) (Dimensões em milímetros)
  • 112.
    AWS D1.1/D1.1M:2010 3-PRE QUALIFICAÇÃO DE WPSS 92 Ver notas acima 77 Solda de chanfro em J duplo (9) Junta de topo (B) Junta em T (T) Junta de ângulo (C) TODAS AS DIMENSÕES EM mm Processo de soldagem Denominação da junta Espessura do Metal Base (U = ilimitado) Preparação em Chanfro Posições de soldagem permitidas Tamanho de solda (E1 + E2) Notas T1 T2 Abertura de raiz Face de raiz Raio de bisel Ângulo de abertura do chanfro Tolerâncias Como detalhado (ver 3.12.3) Como ajustado (ver 3.12.3) SMAW B-P9 12 mín.  R = 0 f = 3 mín. r = 10  = 30 + 2, –0 +U, –0 +6, –0 +10 , –0 ++3, –2 2 2 +10 , –5 Todas S1 + S2 e, f, g, i, j, k TC-P9 12 mín. U R = 0 f = 3 mín. r = 10 oc = 30  ic = 45  + 2, –0 +U, –0 +6, –0 +10 , –0 +3, –2 2 2 +10 , –5 +10 , –5 Todas S1 + S2 e, f, g, i, j, k GMAW FCAW B-P9-GF 6 mín.  R = 0 f = 3 mín. r = 10  = 30 + 2, –0 +U, –0 +6, –0 +10 , –0 +3, –2 2 2 +10 , –5 Todas S1 + S2 a, f, g, i, j, k TC-P9-GF 6 mín. U R = 0 f = 3 mín. r = 10 oc = 30  ic = 45  0 +U, –0 +6, –0 +10 , –0 +3, –2 2 2 +10 , –5 +10 , –5 Todas S1 + S2 a, f, g, i, j, k SAW B-P9-S 20 mín.  R = 0 f = 6 mín. r = 12  = 20 0 +U, –0 +6, –0 +10 , –0 + 2, –0 2 2 +10 , –5 P S1 + S2 f, g, i, j, k TC-P9-S 20 mín. U R = 0 f = 6 mín. r = 12 oc = 20  ic = 45  0 +U, –0 +6, –0 +10 , –0 + 2, –0 2 2 +10 , –5 +10 , –5 P S1 + S2 f, g, i, j, k  oc = Ângulo de abertura do chanfro do canto externo.  ic = Ângulo de abertura do chanfro do canto interno. Figura 3.3 (continuação) - Detalhes de Junta de Solda em Chanfro pré-qualificado de PJP (ver 3.12) (Dimensões em milímetros)
  • 113.
    AWS D1.1/D1.1M:2010 3-PRE QUALIFICAÇÃO DE WPSS 93 Ver notas acima 77 Solda de chanfro em bisel curvado (10) Junta de topo (B) Junta em T (T) Junta de ângulo (C) TODAS AS DIMENSÕES EM mm Processo de soldage m Denominaçã o da junta Espessura do Metal Base (U = ilimitado) Preparação em Chanfro Posições de soldagem permitidas Tamanho de solda (E) Notas T1 T2 T3 Abertura de raiz Face de raiz Raio de curvatura Tolerâncias Como detalhado (ver 3.12.3) Como ajustado (ver 3.12.3) SMAW FCAW-S BTC-P10 5 mín . U T1 mín . R = 0 f = 5 mín. r = 3T1mín. 2 + 2, –0 +U, –0 +U, –0 +3, –2 +U, –2 +U, –0 Todas 5/16 r e, g, j, l GMAW FCAW- G BTC-P10-GF 5 mín . U T1 mín . R = 0 f = 5 mín. r = 3T1mín. 2 + 2, –0 +U, –0 +U, –0 +3, –2 +U, –2 +U, –0 Todas 5/8 r a, g, j, l, m SAW B-P10-S 12 mín . 12 mín . N/A R = 0 f = 12 mín. r = 3T1mín. 2 0 +U, –0 +U, –0 + 2, –0 +U, –2 +U, –0 P 5/16 r g, j, l, m Figura 3.3 (continuação) - Detalhes de Junta de Solda em Chanfro pré- qualificado de PJP (ver 3.12) (Dimensões em polegadas (in))
  • 114.
    AWS D1.1/D1.1M:2010 3-PRE QUALIFICAÇÃO DE WPSS 94 Ver notas acima (na pagina) Solda de chanfro em V curvado (11) Junta de topo (B) TODAS AS DIMENSÕES EM mm Processo de soldagem Denominação da junta Espessura do Metal Base (U = ilimitado) Preparação em Chanfro Posições de soldagem permitidas Tamanho de solda (E) Notas T1 T2 Abertura de raiz Face de raiz Raio de curvatura Tolerâncias Como detalhado (ver 3.12.3) Como ajustado (ver 3.12.3) SMAW FCAW-S B-P11 5 mín. T1 mín. R = 0 f = 5 mín. r = 3T1mín. 2 + 2, –0 +U, –0 +U, –0 +3, –2 +U, –2 +U, –0 Todas 5/8 r e, j, l, m, n GMAW FCAW- G B-P11-GF 5 mín. T1 mín. R = 0 f = 5 mín. r = 3T1mín. 2 + 2, –0 +U, –0 +U, –0 +3, –2 +U, –2 +U, –0 Todas 3/4 r a, j, l, m, n SAW B-P11-S 12 mín. T1 mín. R = 0 f = 12 mín. r = 3T1mín. 2 0 +U, –0 +U, –0 + 2, –0 +U, –2 +U, –0 P 1/2 r j, l, m, n Figura 3.3 (continuação) - Detalhes de Junta de Solda em Chanfro pré- qualificado de PJP (ver 3.12) (Dimensões em polegadas (in))
  • 115.
    AWS D1.1/D1.1M:2010 3-PRE QUALIFICAÇÃO DE WPSS 95 Ver notas acima 77 Solda em chanfro quadrado (1) Junta de topo (B) Junta de ângulo (C) Processo de soldagem Denominação da junta Espessura do Metal Base (U = ilimitado) Preparação em Chanfro Posições de soldagem permitidas Gás de proteção para FCAW Notas T1 T2 Abertura de raiz Tolerâncias Como detalhado (ver 3.13.1) Como ajustado (ver 3.13.1) SMAW B-L1a 1/4 máx. ― R = T1 + 1/16, –0 + 1/4, –1/16 Todas ― e, j C-L1a 1/4 máx. U R = T1 + 1/16, –0 + 1/4, –1/16 Todas ― e, j GMAW FCAW B-L1a-GF 3/8 máx. ― R = T1 + 1/16, –0 + 1/4, –1/16 Todas Não exigido a, j Solda em chanfro quadrado (1) Junta de topo (B) Processo de soldagem Denominação da junta Espessura do Metal Base (U = ilimitado) Preparação em Chanfro Posições de soldagem permitidas Gás de proteção para FCAW Notas T1 T2 Abertura de raiz Tolerâncias Como detalhado (ver 3.13.1) Como ajustado (ver 3.13.1) SMAW B-L1b 1/4 máx. ― R = T1 2 + 1/16, –0 + 1/16, – 1/8 Todas ― d, e, j GMAW FCAW B-L1b-GF 3/8 máx. ― R = 0 a 1/8 + 1/16, –0 + 1/16, – 1/8 Todas Não exigido a, d, j SAW B-L1-S 3/8 máx. ― R = 0 0 + 1/16, –0 P ― J SAW B-L1a-S 5/8 máx. ― R = 0 0 + 1/16, –0 P ― d, j Figura 3.4—Detalhes de Junta de Solda em Chanfro pré-qualificado de CJP - (ver 3.13) (Dimensões em polegadas)
  • 116.
    AWS D1.1/D1.1M:2010 3-PRE QUALIFICAÇÃO DE WPSS 96 Ver notas acima 77 Solda em chanfro quadrado (1) Junta em T (T) Junta de ângulo (C) Processo de soldagem Denominação da junta Espessura do Metal Base (U = ilimitado) Preparação em Chanfro Posições de soldagem permitidas Gás de proteção para FCAW Notas T1 T2 Abertura de raiz Tolerâncias Como detalhado (ver 3.13.1) Como ajustado (ver 3 13.1) SMAW TC-L1b 1/4 máx. U R = T1 2 + 1/16, –0 +1/16, –1/8 Todas ― d, e, g GMAW FCAW TC-L1-GF 3/8 máx. U R = 0 a 1/8 + 1/16, –0 +1/16, –1/8 Todas Não exigido a, d, g SAW TC-L1-S 3/8 máx. U R = 0 0 + 1/16, –0 P ― d, g Solda de chanfro em V simples (2) Junta de topo (B) Tolerâncias Como detalhado (ver 3.13.1) Como ajustado (ver 3 13.1) R = +1/16, –0 +1/4, –1/16  = +10 , –0 +10 , –5 Processo de soldagem Denominação da junta Espessura do Metal Base (U = ilimitado) Preparação em Chanfro Posições de soldagem permitidas Gás de proteção para FCAW Notas T1 T2 Abertura de raiz Ângulo de abertura do chanfro SMAW B-U2a U ― R = 1/4  = 45 Todas ― e, j R = 3/8  = 30 P, V, SC ― e, j R = 1/2  = 20 P, V, SC ― e, j GMAW FCAW B-U2a-GF U ― R = 3/16  = 30 P, V, SC Exigido a, j R = 3/8  = 30 P, V, SC Não exigido a, j R = 1/4  = 45 P, V, SC Não exigido a, j SAW B-L2a-S 2 máx. ― R = 1/4  = 30 P ― j SAW B-U2-S ― ― R = 5/8  = 20 P ― j Figura 3.4 (continuação) - Detalhes de Junta de Solda em Chanfro pré- qualificado de CJP (ver 3.13) (Dimensões em polegadas)
  • 117.
    AWS D1.1/D1.1M:2010 3-PRE QUALIFICAÇÃO DE WPSS 97 Ver notas acima 77 Solda de chanfro em V simples (2) Junta de ângulo (C) Tolerâncias Como detalhado (ver 3 13 1) Como ajustado (ver 3 13 1) R = +1/16, –0 +1/4, –1/16  = +10 , –0 +10 , –5 Processo de soldagem Denominação da junta Espessura do Metal Base (U = ilimitado) Preparação em Chanfro Posições de soldagem permitidas Gás de proteção para FCAW Notas T1 T2 Abertura de raiz Ângulo de abertura do chanfro SMAW C-U2a U U R = 1/4  = 45 Todas ― e, j R = 3/8  = 30 P, V, SC ― e, j R = 1/2  = 20 P, V, SC ― e, j GMAW FCAW C-U2a-GF U U R = 3/16  = 30 P, V, SC Exigido a R = 3/8  = 30 P, V, SC Não exigido a, j R = 1/4  = 45 P, V, SC Não exigido a, j SAW C-L2a-S 2 máx U R = 1/4  = 30 P ― j SAW C-U2-S U U R = 5/8  = 20 P ― j Solda de chanfro em V simples (2) Junta de topo (B) Processo de soldagem Denominação da junta Espessura do Metal Base (U = ilimitado) Preparação em Chanfro Posições de soldagem permitidas Gás de proteção para FCAW Notas T1 T2 Abertura de raiz Face de raiz Ângulo de abertura do chanfro Tolerâncias Como detalhado (ver 3 13 1) Como ajustado (ver 3 13 1) SMAW B-U2 U ― R = 0 a 1/8 f = 0 a 1/8  = 60 + 1/16, –0 + 1/16, –0 +10 , –0 +1/16, –1/8 Não limitado +10 , –5 Todas ― d, e, j GMAW FCAW B-U2-GF U ― R = 0 a 1/8 f = 0 a 1/8  = 60 + 1/16, –0 + 1/16, –0 +10 , –0 +1/16, –1/8 Não limitado +10 , –5 Todas Não exigido a, d, j SAW BC-L2c-S Acima de 1/2 a 1 ― R = 0 f = 1/4 máx  = 60 R = 0 f = +0, –f  = +10 , – 0 + 1/16, –0 1/16 +10 , –5 P ― d, j Acima de 1 a 1-1/2 ― R = 0 f = 1/2 máx  = 60 Acima de 1-1/2 a 2 ― R = 0 f = 5/8 máx  = 60 Figura 3.4 (continuação) - Detalhes de Junta de Solda em Chanfro pré- qualificado de CJP - (ver 3.13) (Dimensões em polegadas)
  • 118.
    AWS D1.1/D1.1M:2010 3-PRE QUALIFICAÇÃO DE WPSS 98 Ver notas acima 77 Solda de chanfro em V simples (2) Junta de ângulo (C) Processo de soldagem Denominação da junta Espessura do Metal Base (U = ilimitado) Preparação em Chanfro Posições de soldagem permitidas Gás de proteção para FCAW Notas T1 T2 Abertura de raiz Face de raiz Ângulo de abertura do chanfro Tolerâncias Como detalhado (ver 3 13 1) Como ajustado (ver 3 13 1) SMAW C-U2 U U R = 0 a 1/8 f = 0 a 1/8  = 60 + 1/16, –0 + 1/16, –0 +10 , –0 +1/16, –1/8 Não limitado +10 , –5 Todas ― d, e, g, j GMAW FCAW C-U2-GF U U R = 0 a 1/8 f = 0 a 1/8  = 60 + 1/16, –0 + 1/16, –0 +10 , –0 +1/16, –1/8 Não limitado +10 , –5 Todas Não exigido a, d, g, j SAW C-U2b-S U U R = 0 a 1/8 f = 1/4 máx  = 60 0 +0, –1/4 +10 , –0 + 1/16, –0 1/16 +10 , –5 P ― d, g, j Solda de chanfro em X (3) Junta de topo (B) Tolerâncias Como detalhado (ver 3 13 1) Como ajustado (ver 3 13 1) R = 0 +1/4, –0 f = 0 +1/16, –0  = +10 , –0 +10 , –5 Espaçador SAW 0 +1/16, –0 SMA W 0 +1/8, –0 Processo de soldagem Denominação da junta Espessura do Metal Base (U = ilimitado) Preparação em Chanfro Posições de soldage m permitid as Gás de proteçã o para FCAW Notas T1 T2 Abertura de raiz Face de raiz Ângulo de abertura do chanfro SMAW B-U3a U Espaçador = 1/8  R ― R = 1/4 f = 0 a 1/8  = 45 Todas ― d, e, h, j R = 3/8 f = 0 a 1/8  = 30 P, V, SC ― R = 1/2 f = 0 a 1/8  = 20 P, V, SC ― SAW B-U3a-S U Espaçador = 1/4  R ― R = 5/8 f = 0 a 1/4  = 20 P ― d,h, j Figura 3.4 (continuação) - Detalhes de Junta de Solda em Chanfro pré- qualificado de CJP - (ver 3.13) (Dimensões em polegadas)
  • 119.
    AWS D1.1/D1.1M:2010 3-PRE QUALIFICAÇÃO DE WPSS 99 Ver notas acima (na pagina) Solda de chanfro em X (3) Junta de topo (B) Para B-U3c-S apenas T1 S1 Acima de até 1-3/8 2 2-1/2 2-1/2 3 1-3/4 3 3-5/8 2-1/8 3-5/8 4 2-3/8 4 4-3/4 2-3/4 4-3/4 5-1/2 3-1/4 5-1/2 6-1/4 3-3/4 Para T1 > 6-1/4 ou T1 ≤ 2 S1 = 2/3 (T1 – 1/4) Processo de soldagem Denominação da junta Espessura do Metal Base (U = ilimitado) Preparação em Chanfro Posições de soldagem permitidas Gás de proteção para FCAW Notas T1 T2 Abertura de raiz Face de raiz Ângulo de abertura do chanfro Tolerâncias Como detalhado (ver 3 13 1) Como ajustado (ver 3 13 1) SMAW B-U3b U ― R = 0 a 1/8 f = 0 a 1/8  =  = 60 + 1/16, –0 + 1/16, –0 +10 , –0 +1/16, –1/8 Não limitado +10 , –5 Todas ― d, e, h, j GMAW FCAW B-U3-GF Todas Não exigido a, d, h, j SAW B-U3c-S U ― R = 0 f = 1/4 mín  =  = 60 + 1/16, –0 + 1/16, –0 +10 , –0 +1/16, –0 +1/4, –0 P ― d,h, j Para encontrar S1 ver tabela acima S2 = T1 – (S1 + f) Solda de chanfro em bisel simples (4) Junta de topo (B) Tolerâncias Como detalhado (ver 3 13 1) Como ajustado (ver 3 13 1) R = +1/16, –0 +1/4, –1/16  = +10 , –0 +10 , –5 Processo de soldagem Denominação da junta Espessura do Metal Base (U = ilimitado) Preparação em Chanfro Posições de soldagem permitidas Gás de proteção para FCAW Notas T1 T2 Abertura de raiz Ângulo de abertura do chanfro SMAW B-U4a U ― R = 1/4  = 45 Todas ― c, e, j R = 3/8  = 30 Todas ― c, e, j GMAW FCAW B-U4a-GF U ― R = 3/16  = 30 Todas Exigido a, c, j R = 1/4  = 45 Todas Não exigido a, c, j R = 3/8  = 30 P, H Não exigido a, c, j SAW B-U4a-S U ― R = 3/8  = 30 P ― c, j R = 1/4  = 45 Figura 3.4 (continuação) - Detalhes de Junta de Solda em Chanfro pré- qualificado de CJP - (ver 3.13) (Dimensões em polegadas)
  • 120.
    AWS D1.1/D1.1M:2010 3-PRE QUALIFICAÇÃO DE WPSS 100 Ver notas acima 77 Solda de chanfro em bisel simples (4) Junta em T (T) Junta de ângulo (C) Tolerâncias Como detalhado (ver 3 13 1) Como ajustado (ver 3 13 1) R = +1/16, –0 +1/4, –1/16  = +10 , –0 +10 , –5 Processo de soldagem Denominação da junta Espessura do Metal Base (U = ilimitado) Preparação em Chanfro Posições de soldagem permitidas Gás de proteção para FCAW Notas T1 T2 Abertura de raiz Ângulo de abertura do chanfro SMAW TC-U4a U U R = 1/4  = 45 Todas ― e, g, j, k R = 3/8  = 30 P, V, SC ― e, g, j, k GMAW FCAW TC-U4a-GF U U R = 3/16  = 30 Todas Exigido a, g, j, k R = 3/8  = 30 P Não exigido a, g, j, k R = 1/4  = 45 Todas Não exigido a, g, j, k SAW TC-U4a-S U U R = 3/8  = 30 P ― g, j, k R = 1/4  = 45 Solda de chanfro em bisel simples (4) Junta de topo (B) Processo de soldagem Denominação da junta Espessura do Metal Base (U = ilimitado) Preparação em Chanfro Posições de soldagem permitidas Gás de proteção para FCAW Notas T1 T2 Abertura de raiz Face de raiz Ângulo de abertura do chanfro Tolerâncias Como detalhado (ver 3 13 1) Como ajustado (ver 3 13 1) SMAW B-U4b U ― R = 0 a 1/8 f = 0 a 1/8  = 45 + 1/16, –0 + 1/16, –0 +10 , –0 +1/16, –1/8 Não limitado +10 , –5 Todas ― c, d, e, j GMAW FCAW B-U4b-GF U ― Todas Não exigido a, c, d, j SAW B-U4b-S U ― R = 0 f = 1/4 máx  = 60 0 +0, –1/8 +10 , –0 + 1/4, –0 1/16 +10 , –5 P ― c, d, j Figura 3.4 (continuação) - Detalhes de Junta de Solda em Chanfro pré- qualificado de CJP (ver 3.13) (Dimensões em polegadas)
  • 121.
    AWS D1.1/D1.1M:2010 3-PRE QUALIFICAÇÃO DE WPSS 101 Ver notas acima (na pagina) Solda de chanfro em bisel simples (4) Junta em T (T) Junta de ângulo (C) Processo de soldagem Denominação da junta Espessura do Metal Base (U = ilimitado) Preparação em Chanfro Posições de soldagem permitidas Gás de proteção para FCAW Notas T1 T2 Abertura de raiz Face de raiz Ângulo de abertura do chanfro Tolerâncias Como detalhado (ver 3 13 1) Como ajustado (ver 3 13 1) SMAW TC-U4b U U R = 0 a 1/8 f = 0 a 1/8  = 45 + 1/16, –0 + 1/16, –0 +10 , –0 +1/16, –1/8 Não limitado +10 , –5 Todas ― d, e, g, j, k GMAW FCAW TC-U4b-GF U U Todas Não exigido a, d, g, j, k SAW TC-U4b-S U U R = 0 f = 1/4 máx  = 60 0 +0, –1/8 +10 , –0 + 1/4, –0 1/16 +10 , –5 F ― d, g, j, k Solda de chanfro em bisel simples (4) Junta de topo (B) Junta em T (T) Junta de ângulo (C) Tolerâncias Como detalhado (ver 3 13 1) Como ajustado (ver 3 13 1) R = 0 +1/4, –0 f = +1/16, –0 1/16  = +10 , – 0 +10 , –5 Espaçador +1/16, –0 +1/8, –0 Processo de soldagem Denominação da junta Espessura do Metal Base (U = ilimitado) Preparação em Chanfro Posições de soldagem permitidas Gás de proteção para FCAW Notas T1 T2 Abertura de raiz Face de raiz Ângulo de abertura do chanfro SMAW B-U5b U Espaçador = 1/8  R ― R = 1/4 f = 0 a 1/8  = 45 Todas ― c, d, e, h, j TC-U5a U Espaçador = 1/4  R U R = 1/4 f = 0 a 1/8  = 45 Todas ― d, e, g, h, j, k R = 3/8 f = 0 a 1/8  = 30 P, SC ― d, e, g, h, j, k Figura 3.4 (continuação) - Detalhes de Junta de Solda em Chanfro pré- qualificado de CJP (ver 3.13) (Dimensões em polegadas
  • 122.
    AWS D1.1/D1.1M:2010 3-PRE QUALIFICAÇÃO DE WPSS 102 Ver notas na página 140 Solda de chanfro em bisel duplo (5) Junta de topo (B) Processo de soldagem Denominação da junta Espessura do Metal Base (U = ilimitada) Preparação em Chanfro Posições de soldagem permitidas Gás de proteção para FCAW Notas T1 T2 Abertura de raiz Face de raiz Ângulo de abertura do chanfro Tolerâncias Como detalhado (ver 3 13 1) Como ajustado (ver 3 13 1) SMAW B-U5a U ― R = 0 a 1/8 f = 0 a 1/8  = 45  = 0 a 15 + / 6, ‒ + / 6, ‒  +  +10 ‒ + / 6, ‒ /8 Não limitado  +  +10 ‒5 Todas ― c, d, e, h, j GMAW FCAW B-U5-GF U ― R = 0 a 1/8 f = 0 a 1/8  = 45  = 0 a 15 + / 6, ‒ + / 6, ‒  +  = +10 , ‒ + / 6, ‒ /8 Não limitado  +  = +10 , ‒5 Todas Não Requerido a, c, d, h, j Solda de chanfro em bisel duplo (5) Junta em T (T) Junta de ângulo (C) Processo de soldagem Denominação da junta Espessura do Metal Base (U = ilimitada) Preparação em Chanfro Posições de soldagem permitidas Gás de proteção para FCAW Notas T1 T2 Abertura de raiz Face de raiz Ângulo de abertura do chanfro Tolerâncias Como detalhado (ver 3 13 1) Como ajustado (ver 3 13 1) SMAW TC-U5b U U R = 0 a 1/8 f = 0 a 1/8  = 45 + / 6, ‒ + / 6, ‒ +10 , ‒ + / 6, ‒ /8 Não limitado +10 , ‒5 Todas ― d, e, g, h, j, k GMAW FCAW TC-U5-GF U U Todas Não Requerido a, d, g, h, j, k SAW TC-U5-S U U R = 0 f = 1/4 máx  = 60 0 + , ‒3/ 6 +10 , ‒ + / 6, ‒ 1/16 +10 , ‒5 P ― d, g, h, j, k Figura 3.4 (continuação) - Detalhes Pré-Qualificados de Juntas Soldadas em Chanfro CJP (ver 3.13) (Dimensões em polegadas (in)
  • 123.
    AWS D1.1/D1.1M:2010 3-PRE QUALIFICAÇÃO DE WPSS 103 Ver notas na página 140 Solda de chanfro em U (6) Junta de topo (B) Junta de ângulo (C) Tolerâncias Como detalhado (ver 3 13 1) Como ajustado (ver 3 13 1) R + / 6, ‒ + / 6, ‒ /8  = +10 , ‒ +10 , ‒5 f = 1/16 Não limitado r + /8, ‒ + /8, ‒ Processo de soldagem Denominação da junta Espessura do Metal Base (U = ilimitada) Preparação em Chanfro Posições de soldagem permitidas Gás de proteção para FCAW Notas T1 T2 Abertura de raiz Ângulo de abertura do chanfro Face de raiz Raio do bisel SMAW B-U6 U ― R = 0 a 1/8  = 45 f = 1/8 r = 1/4 Todas ― d, e, j R = 0 a 1/8  = 20 f = 1/8 r = 1/4 P, SC ― d, e, j C-U6 U U R = 0 a 1/8  = 45 f = 1/8 r = 1/4 Todas ― d, e, g, j R = 0 a 1/8  = 20 f = 1/8 r = 1/4 P, SC ― d, e, g, j GMAW FCAW B-U6-GF U ― R = 0 a 1/8  = 20 f = 1/8 r = 1/4 Todas Não Requerido a, d, j C-U6-GF U U R = 0 a 1/8  = 20 f = 1/8 r = 1/4 Todas Não Requerido a, d, g, j Solda de chanfro em duplo U (7) Junta de topo (B) Tolerâncias Como detalhado (ver 3 13 1) Como ajustado (ver 3 13 1) Para B-U7 e B-U7-GF R + / 6, ‒ + / 6, ‒ /8  = +10 , ‒ +10 , ‒5 f + / 6, ‒ Não limitado r + /4, ‒ 1/16 Para B-U7-S R = +0 + / 6, ‒  = +10 , ‒ +10 , ‒5 f + , ‒ /4 1/16 r = +1/4, ‒ 1/16 Processo de soldagem Denominação da junta Espessura do Metal Base (U = ilimitada) Preparação em Chanfro Posições de soldagem permitidas Gás de proteção para FCAW Notas T1 T2 Abertura de raiz Ângulo de abertura do chanfro Face de raiz Raio do bisel SMAW B-U7 U ― R = 0 a 1/8  = 45 f = 1/8 r = 1/4 Todas ― d, e, h, j R = 0 a 1/8  = 20 f = 1/8 r = 1/4 P, SC ― d, e, h, j GMAW FCAW B-U7-GF U ― R = 0 a 1/8  = 20 f = 1/8 r = 1/4 Todas Não Requerido a, d, h, j SAW B-U7-S U ― R = 0  = 20 f = 1/4 máx r = 1/4 P ― d, h, j Figura 3.4 (continuação) - Detalhes Pré-Qualificados de Juntas Soldadas em Chanfro CJP (ver 3.13) (Dimensões em polegadas (in)
  • 124.
    AWS D1.1/D1.1M:2010 3-PRE QUALIFICAÇÃO DE WPSS 104 Ver notas na página 140 Solda de chanfro em J (8) Junta de topo (B) Tolerâncias Como detalhado (ver 3 13 1) Como ajustado (ver 3 13 1) B-U8 e B-U8-GF R + / 6, ‒ + / 6, ‒ /8  = +10 , ‒ +10 , ‒5 f + /8, ‒ Não limitado r + /4, ‒ 1/16 Para B-U8-S R = +0 + /4, ‒  = +10 , ‒ +10 , ‒5 f + , ‒ /8 1/16 r + /4, ‒ 1/16 Processo de soldagem Denominação da junta Espessura do Metal Base (U = ilimitada) Preparação em Chanfro Posições de soldagem permitidas Gás de proteção para FCAW Notas T1 T2 Abertura de raiz Ângulo de abertura do chanfro Face de raiz Raio do bisel SMAW B-U8 U ― R = 0 a 1/8  = 45 f = 1/8 r = 3/8 Todas ― c, d, e, j GMAW FCAW B-U8-GF U ― R = 0 a 1/8  = 30 f = 1/8 r = 3/8 Todas Não Requerido a, c, d, j SAW B-U8-S U ― R = 0  = 45 f = 1/4 máx r = 3/8 P ― c, d, j Solda de chanfro em J (8) Junta em T (T) Junta de ângulo (C) Tolerâncias Como detalhado (ver 3 13 1) Como ajustado (ver 3 13 1) TC-U8a e TC-U8a-GF R + / 6, ‒ + / 6, ‒ /8  = +10 , ‒ +10 , ‒5 f + / 6, ‒ Não limitado r + /4, ‒ 1/16 Para TC-U8a-S R = 0 + /4, ‒  = +10 , ‒ +10 , ‒5 f + , ‒ /8 1/16 r + /4, ‒ 1/16 Processo de soldagem Denominação da junta Espessura do Metal Base (U = ilimitada) Preparação em Chanfro Posições de soldagem permitidas Gás de proteção para FCAW Notas T1 T2 Abertura de raiz Ângulo de abertura do chanfro Face de raiz Raio do bisel SMAW TC-U8a U U R = 0 a 1/8  = 45 f = 1/8 r = 3/8 Todas ― d, e, g, j, k R = 0 a 1/8  = 30 f = 1/8 r = 3/8 Todas ― d, e, g, j, k GMAW FCAW TC-U8a-GF U U R = 0 a 1/8  = 30 f = 1/8 r = 3/8 Todas Não Requerido a, d, g, j, k SAW TC-U8a-S U U R = 0  = 45 f = 1/4 máx r = 3/8 P ― d, g, j, k Figura 3.4 (continuação) Detalhes Pré-Qualificados de Juntas Soldadas em Chanfro CJP (ver 3.13) (Dimensões em polegadas (in)
  • 125.
    AWS D1.1/D1.1M:2010 3-PRE QUALIFICAÇÃO DE WPSS 105 Ver notas na página 140 Solda de chanfro em J duplo (9) Junta de topo (B) Tolerâncias Como detalhado (ver 3 13 1) Como ajustado (ver 3 13 1) R + / 6, ‒ + / 6, ‒ /8  = +10 , ‒ +10 , ‒5 f =  / 6, ‒ Não limitado r + /8, ‒ 1/16 Processo de soldagem Denominação da junta Espessura do Metal Base (U = ilimitada) Preparação em Chanfro Posições de soldagem permitidas Gás de proteção para FCAW Notas T1 T2 Abertura de raiz Ângulo de abertura do chanfro Face de raiz Raio do bisel SMAW B-U9 U ― R = 0 a 1/8  = 45 f = 1/8 r = 3/8 Todas ― c, d, e, h, j GMAW FCAW B-U9-GF U ― R = 0 a 1/8  = 30 f = 1/8 r = 3/8 Todas Não Requerido a, c, d, h, j Solda de chanfro em J duplo (9) Junta em T (T) Junta de ângulo (C) Tolerâncias Como detalhado (ver 3 13 1) Como ajustado (ver 3 13 1) R + / 6, ‒ + / 6, ‒ /8  = +10 , ‒ +10 , ‒5 f =  / 6, ‒ Não limitado r + /8, ‒ 1/16 Processo de soldagem Denominação da junta Espessura do Metal Base (U = ilimitada) Preparação em Chanfro Posições de soldagem permitidas Gás de proteção para FCAW Notas T1 T2 Abertura de raiz Ângulo de abertura do chanfro Face de raiz Raio do bisel SMAW TC-U9a U U R = 0 a 1/8  = 45 f = 1/8 r = 3/8 Todas ― d, e, g, h, j, k R = 0 a 1/8  = 30 f = 1/8 r = 3/8 P, SC ― d, e, g, h, k GMAW FCAW TC-U9a-GF U U R = 0 a 1/8  = 30 f = 1/8 r = 3/8 Todas Não Requerido a, d, g, h, j, k Figura 3.4 (continuação) - Detalhes Pré-Qualificados de Juntas Soldadas em Chanfro CJP (ver 3.13) (Dimensões em polegadas (in)
  • 126.
    AWS D1.1/D1.1M:2010 3-PRE QUALIFICAÇÃO DE WPSS 106 Ver notas na página 140 Solda de chanfro quadrado (1) Junta de topo (B) Junta de ângulo (C) TODAS AS DIMENSÕES EM mm Processo de soldagem Denominação da junta Espessura do Metal Base (U = ilimitada) Preparação em Chanfro Posições de soldagem permitidas Gás de proteção para FCAW Notas T1 T2 Abertura de raiz Tolerâncias Como detalhado (ver 3 13 1) Como ajustado (ver 3 13 1) SMAW B-L1a 6 máx ― R = T1 +2, ‒ +6, ‒2 Todas ― e, j C-L1a 6 máx U R = T1 +2, ‒ +6, ‒2 Todas ― e, j GMAW FCAW B-L1a-GF 10 máx ― R = T1 +2, ‒ +6, ‒2 Todas Não Requerido a, j Solda de chanfro quadrado (1) Junta de topo (B) TODAS AS DIMENSÕES EM mm Processo de soldagem Denominação da junta Espessura do Metal Base (U = ilimitada) Preparação em Chanfro Posições de soldagem permitidas Gás de proteção para FCAW Notas T1 T2 Abertura de raiz Tolerâncias Como detalhado (ver 3 13 1) Como ajustado (ver 3 13 1) SMAW B-L1b 6 máx ― R = T1 2 +2, ‒ +2, ‒3 Todas ― d, e, j GMAW FCAW B-L1b-GF 10 máx ― R = 0 a 3 +2, ‒ +2, ‒3 Todas Não Requerido a, d, j SAW B-L1-S 10 máx ― R = 0 0 +2, ‒ P ― j B-L1a-S 16 máx ― R = 0 0 +2, ‒ P ― d, j Figura 3.4 (continuação) Detalhes Pré-Qualificados de Juntas Soldadas em Chanfro CJP (ver 3.13) (Dimensões em Milímetros)
  • 127.
    AWS D1.1/D1.1M:2010 3-PRE QUALIFICAÇÃO DE WPSS 107 Ver notas na página 140 Solda de chanfro quadrado (1) Junta em T (T) Junta de ângulo (C) TODAS AS DIMENSÕES EM mm Processo de soldagem Denominação da junta Espessura do Metal Base (U = ilimitada) Preparação em Chanfro Posições de soldagem permitidas Gás de proteção para FCAW Notas T1 T2 Abertura de raiz Tolerâncias Como detalhado (ver 3 13 1) Como ajustado (ver 3 13 1) SMAW TC-L1b 6 máx U R = T1 2 +2, ‒ +2, ‒3 Todas ― d, e, g GMAW FCAW TC-L1-GF 10 máx U R = 0 a 3 +2, ‒ +2, ‒3 Todas Não Requerido a, d, g SAW TC-L1-S 10 máx U R = 0 0 +2, ‒ P ― d, g Solda de chanfro em V simples (2) Junta de topo (B) TODAS AS DIMENSÕES EM mm Tolerâncias Como detalhado (ver 3 13 1) Como ajustado (ver 3 13 1) R +2, ‒ +6, ‒2  = +10 , ‒ +10 , ‒5 Processo de soldagem Denominação da junta Espessura do Metal Base (U = ilimitada) Preparação em Chanfro Posições de soldagem permitidas Gás de proteção para FCAW Notas T1 T2 Abertura de raiz Ângulo do chanfro SMAW B-U2a U ― R = 6  = 45 Todas ― e, j R = 10  = 30 P, V, SC ― e, j R = 12  = 20 P, V, SC ― e, j GMAW FCAW B-U2a-GF U ― R = 5  = 30 P, V, SC Requerido a, j R = 10  = 30 P, V, SC Não Requerido a, j R = 6  = 45 P, V, SC Não Requerido a, j SAW B-L2a-S 50 máx ― R = 6  = 30 P ― j B-U2-S I ― R = 16  = 20 P ― j Figura 3.4 (continuação) - Detalhes Pré-Qualificados de Juntas Soldadas em Chanfro CJP (ver 3.13) (Dimensões em Milímetros)
  • 128.
    AWS D1.1/D1.1M:2010 3-PRE QUALIFICAÇÃO DE WPSS 108 Ver notas na página 140 Solda de chanfro em V simples (2) Junta de ângulo (C) TODAS AS DIMENSÕES EM mm Tolerâncias Como detalhado (ver 3 13 1) Como ajustado (ver 3 13 1) R +2, ‒ +6, ‒2  = +10 , ‒ +10 , ‒5 Processo de soldagem Denominação da junta Espessura do Metal Base (U = ilimitada) Preparação em Chanfro Posições de soldagem permitidas Gás de proteção para FCAW Notas T1 T2 Abertura de raiz Ângulo do chanfro SMAW C-U2a U U R = 6  = 45 Todas ― e, j R = 10  = 30 P, V, SC ― e, j R = 12  = 20 P, V, SC ― e, j GMAW FCAW C-U2a-GF U U R = 5  = 30 P, V, SC Requerido a R = 10  = 30 P, V, SC Não Requerido a, j R = 6  = 45 P, V, SC Não Requerido a, j SAW C-L2a-S 50 máx U R = 6  = 30 P ― j C-U2-S U U R = 16  = 20 P ― j Solda de chanfro em V simples (2) Junta de topo (B) TODAS AS DIMENSÕES EM mm Processo de soldagem Denominação da junta Espessura do Metal Base (U = ilimitada) Preparação em Chanfro Posições de soldagem permitidas Gás de proteção para FCAW Notas T1 T2 Abertura de raiz Face de raiz Ângulo de abertura do chanfro Tolerâncias Como detalhado (ver 3 13 1) Como ajustado (ver 3 13 1) SMAW B-U2 U  R = 0 a 3 f = 0 a 3  = 60 + 2, ‒ +2, ‒ +10 , ‒ +2, ‒3 Não limitado +10 , ‒5 Todas ― d, e, j GMAW FCAW B-U2-GF U  R = 0 a 3 f = 0 a 3  = 60 + 2, ‒ +2, ‒ +10 , ‒ +2, ‒3 Não limitado +10 , ‒5 Todas Não Requerido a, d, j SAW B-L2c-S Acima de 12 a 25  R = 0 f = 6 máx  = 60 R = 0 f + , ‒f  = +10 , ‒ +2, ‒ 2 +10 , ‒5 P ― d, j Acima de 25 a 38  R = 0 f = 12 máx  = 60 Acima de 38 a 50  R = 0 f = 16 máx  = 60 Figura 3.4 (continuação)— Detalhes Pré-Qualificados de Juntas Soldadas em Chanfro CJP (ver 3.13) (Dimensões em Milímetros)
  • 129.
    AWS D1.1/D1.1M:2010 3-PRE QUALIFICAÇÃO DE WPSS 109 Ver notas na página 140 Solda de chanfro em V simples (2) Junta de ângulo (C) TODAS AS DIMENSÕES EM mm Processo de soldagem Denominação da junta Espessura do Metal Base (U = ilimitada) Preparação em Chanfro Posições de soldagem permitidas Gás de proteção para FCAW Notas T1 T2 Abertura de raiz Face de raiz Ângulo de abertura do chanfro Tolerâncias Como detalhado (ver 3 13 1) Como ajustado (ver 3 13 1) SMAW C-U2 U U R = 0 a 3 f = 0 a 3  = 60 + 2, ‒ +2, ‒ +10 , ‒ +2, ‒3 Não limitado +10 , ‒5 Todas ― d, e, g, j GMAW FCAW C-U2-GF U U R = 0 a 3 f = 0 a 3  = 60 + 2, ‒ +2, ‒ +10 , ‒ +2, ‒3 Não limitado +10 , ‒5 Todas Não Requerido a, d, g, j SAW C-U2b-S U U R = 0 a 3 f = 6 máx  = 60 0 + , ‒6 +10 , ‒ +2, ‒ 2 +10 , ‒5 P ― d, g, j Solda de chanfro em X (3) Junta de topo (B) TODAS AS DIMENSÕES EM mm Tolerâncias Como detalhado (ver 3 13 1) Como ajustado (ver 3 13 1) R = 0 +6, ‒ f = 0 +2, ‒  = +10 , ‒ +10 , ‒5 Espaçador SAW 0 +2, ‒ SMAW 0 +3, ‒ Processo de soldagem Denominação da junta Espessura do Metal Base (U = ilimitada) Preparação em Chanfro Posições de soldagem permitidas Gás de proteção para FCAW Notas T1 T2 Abertura de raiz Face de raiz Ângulo de abertura do chanfro SMAW B-U3a U Espaçador = 1/8  R ― R = 6 f = 0 a 3  = 45 Todas ― d, e, h, j R = 10 f = 0 a 3  = 30 P, V, SC ― R = 12 f = 0 a 3  = 20 P, V, SC ― SAW B-U3a-S U Espaçador = 1/4  R ― R = 16 f = 0 a 6  = 20 P ― d, h, j Figura 3.4 (continuação)— Detalhes Pré-Qualificados de Juntas Soldadas em Chanfro CJP (ver 3.13) (Dimensões em Milímetros)
  • 130.
    AWS D1.1/D1.1M:2010 3-PRE QUALIFICAÇÃO DE WPSS 110 Ver notas na página 140 Solda de chanfro em X (3) Junta de topo (B) TODAS AS DIMENSÕES EM mm Para B-U3c-S apenas T1 S1 Acima de a 35 50 60 60 80 45 80 90 55 90 100 60 100 120 70 120 140 80 140 160 95 Para T1 > 160 ou T1 ≤ 5 S1 = 2/3 (T1 ‒ 6) Processo de soldagem Denominação da junta Espessura do Metal Base (U = ilimitada) Preparação em Chanfro Posições de soldagem permitidas Gás de proteção para FCAW Notas T1 T2 Abertura de raiz Face de raiz Ângulo de abertura do chanfro Tolerâncias Como detalhado (ver 3 13 1) Como ajustado (ver 3 13 1) SMAW B-U3b U ― R = 0 a 3 f = 0 a 3  =  = 60 + 2, ‒ + 2, ‒ +10 , ‒ +2, ‒3 Não limitado +10 , ‒5 Todas ― d, e, h, j GMAW FCAW B-U3-GF Todas Não Requerido a, d, h, j SAW B-U3c-S U ― R = 0 f = 6 mín  =  = 60 + 2, ‒ + 6, ‒ +10 , ‒ + 2, ‒ + 6, ‒ +10 , ‒ P ― d, h, j Para encontrar S1 ver tabela acima S2 = T1 ‒ (S1 + f) Solda de chanfro em bisel simples (4) Junta de topo (B) TODAS AS DIMENSÕES EM mm Tolerâncias Como detalhado (ver 3 13 1) Como ajustado (ver 3 13 1) R +2, ‒ +6, ‒2  = +10 , ‒ +10 , ‒5 Processo de soldagem Denominação da junta Espessura do Metal Base (U = ilimitada) Preparação em Chanfro Posições de soldagem permitidas Gás de proteção para FCAW Notas T1 T2 Abertura de raiz Ângulo de abertura do chanfro SMAW B-U4a U ― R = 6  = 45 Todas ― c, e, j R = 10  = 30 Todas ― c, e, j GMAW FCAW B-U4a-GF U ― R = 5  = 30 Todas Requerido a, c, j R = 6  = 45 Todas Não Requerido a, c, j R = 10  = 30 P, H Não Requerido a, c, j SAW B-U4a-S U ― R = 10  = 30 P ― c, j R = 6  = 45 Figura 3.4 (continuação)— Detalhes Pré-Qualificados de Juntas Soldadas em Chanfro CJP (ver 3.13) (Dimensões em Milímetros)
  • 131.
    AWS D1.1/D1.1M:2010 3-PRE QUALIFICAÇÃO DE WPSS 111 Ver notas na página 140 Solda de chanfro em bisel simples (4) Junta em T (T) Junta de ângulo (C) TODAS AS DIMENSÕES EM mm Tolerâncias Como detalhado (ver 3 13 1) Como ajustado (ver 3 13 1) R +2, ‒ +6, ‒2  = +10 , ‒ +10 , ‒5 Processo de soldagem Denominação da junta Espessura do Metal Base (U = ilimitada) Preparação em Chanfro Posições de soldagem permitidas Gás de proteção para FCAW Notas T1 T2 Abertura de raiz Ângulo de abertura do chanfro SMAW TC-U4a U U R = 6  = 45 Todas ― e, g, j, k R = 10  = 30 P, V, SC ― e, g, j, k GMAW FCAW TC-U4a-GF U U R = 5  = 30 Todas Requerido a, g, j, k R = 10  = 30 P Não Requerido a, g, j, k R = 6  = 45 Todas Não Requerido a, g, j, k SAW TC-U4a-S U U R = 10  = 30 P ― g, j, k R = 6  = 45 Solda de chanfro em bisel simples (4) Junta de topo (B) TODAS AS DIMENSÕES EM mm Processo de soldagem Denominação da junta Espessura do Metal Base (U = ilimitada) Preparação em Chanfro Posições de soldagem permitidas Gás de proteção para FCAW Notas T1 T2 Abertura de raiz Tolerâncias Como detalhado (ver 3 13 1) Como ajustado (ver 3 13 1) SMAW B-U4b U ― R = 0 a 3 f = 0 a 3  = 45 + 2, ‒ + 2, ‒ +10 , ‒ +2, ‒3 Não limitado +10 , ‒5 Todas ― c, d, e, j GMAW FCAW B-U4b-GF U ― Todas Não Requerido a, c, d, j SAW B-U4b-S U ― R = 0 f = 6 máx  = 60 0 + , ‒3 +10 , ‒ +6, ‒ 2 +10 , ‒5 P ― c, d, j Figura 3.4 (continuação)— Detalhes Pré-Qualificados de Juntas Soldadas em Chanfro CJP (ver 3.13) (Dimensões em Milímetros)
  • 132.
    AWS D1.1/D1.1M:2010 3-PRE QUALIFICAÇÃO DE WPSS 112 Ver notas na página 140 Solda de chanfro em bisel simples (4) Junta em T (T) Junta de ângulo (C) TODAS AS DIMENSÕES EM mm Processo de soldagem Denominação da junta Espessura do Metal Base (U = ilimitada) Preparação em Chanfro Posições de soldagem permitidas Gás de proteção para FCAW Notas T1 T2 Abertura de raiz Face de raiz Ângulo de abertura do chanfro Tolerâncias Como detalhado (ver 3 13 1) Como ajustado (ver 3 13 1) SMAW TC-U4b U U R = 0 a 3 f = 0 a 3  = 45 + 2, ‒ + 2, ‒ +10 , ‒ +2, ‒3 Não limitado +10 , ‒5 Todas ― d, e, g, j, k GMAW FCAW TC-U4b-GF U U Todas Não Requerido a, d, g, j, k SAW TC-U4b-S U U R = 0 f = 6 máx  = 60 0 + , ‒3 +10 , ‒ + 6, ‒ 2 +10 , ‒5 P ― d, g, j, k Solda de chanfro em bisel duplo (5) Junta de topo (B) Junta em T (T) Junta de ângulo (C) TODAS AS DIMENSÕES EM mm Tolerâncias Como detalhado (ver 3 13 1) Como ajustado (ver 3 13 1) R = 0 +6, ‒ f +2, ‒ 2  = +10 , ‒ +10 , ‒5 Espaçador +2, ‒ +3, ‒ Processo de soldagem Denominação da junta Espessura do Metal Base (U = ilimitada) Preparação em Chanfro Posições de soldagem permitidas Gás de proteção para FCAW Notas T1 T2 Abertura de raiz Face de raiz Ângulo de abertura do chanfro SMAW B-U5b U Espaçador = 1/8  R ― R = 6 f = 0 a 3  = 45 Todas ― c, d, e, h, j TC-U5a U Espaçador = 1/4  R U R = 6 f = 0 a 3  = 45 Todas ― d, e, g, h, j, k R = 10 f = 0 a 3  = 30 P, SC ― d, e, g, h, j, k Figura 3.4 (continuação)— Detalhes Pré-Qualificados de Juntas Soldadas em Chanfro CJP (ver 3.13) (Dimensões em Milímetros)
  • 133.
    AWS D1.1/D1.1M:2010 3-PRE QUALIFICAÇÃO DE WPSS 113 Ver notas na página 140 Solda de chanfro em bisel duplo (5) Junta de topo (B) TODAS AS DIMENSÕES EM mm Processo de soldagem Denominação da junta Espessura do Metal Base (U = ilimitada) Preparação em Chanfro Posições de soldagem permitidas Gás de proteção para FCAW Notas T1 T2 Abertura de raiz Face de raiz Ângulo de abertura do chanfro Tolerâncias Como detalhado (ver 3 13 1) Como ajustado (ver 3 13 1) SMAW B-U5a U ― R = 0 a 3 f = 0 a 3  = 45  = 0 a 15 + 2, ‒ + 2, ‒  +  = +10 , ‒ +2, ‒3 Não limitado  +  = +10 , ‒5 Todas ― c, d, e, h, j GMAW FCAW B-U5-GF U ― R = 0 a 3 f = 0 a 3  = 45  = 0 a 15 + 2, ‒ + 2, ‒  +  = +10 , ‒ +2, ‒3 Não limitado  +  = +10 , ‒5 Todas Não Requerido a, c, d, h, j Solda de chanfro em bisel duplo (5) Junta em T (T) Junta de ângulo (C) TODAS AS DIMENSÕES EM mm Processo de soldagem Denominação da junta Espessura do Metal Base (U = ilimitada) Preparação em Chanfro Posições de soldagem permitidas Gás de proteção para FCAW Notas T1 T2 Abertura de raiz Face de raiz Ângulo de abertura do chanfro Tolerâncias Como detalhado (ver 3 13 1) Como ajustado (ver 3 13 1) SMAW TC-U5b U U R = 0 a 3 f = 0 a 3  = 45 + 2, ‒ + 2, ‒ +10 , ‒ +2, ‒3 Não limitado +10 , ‒5 Todas ― d, e, g, h, j, k GMAW FCAW TC-U5-GF U U Todas Não Requerido a, d, g, h, j, k SAW TC-U5-S U U R = 0 f = 6 máx  = 60 0 + , ‒5 +10 , ‒ + 2, ‒ 2 +10 , ‒5 P ― d, g, h, j, k Figura 3.4 (continuação) - Detalhes Pré-Qualificados de Juntas Soldadas em Chanfro CJP (ver 3.13) (Dimensões em Milímetros)
  • 134.
    AWS D1.1/D1.1M:2010 3-PRE QUALIFICAÇÃO DE WPSS 114 Ver notas na página 140 Solda de chanfro em U (6) Junta de topo (B) Junta de ângulo (C) TODAS AS DIMENSÕES EM mm Tolerâncias Como detalhado (ver 3 13 1) Como ajustado (ver 3 13 1) R +2, ‒ +2, ‒3  = +10 , ‒ +10 , ‒5 f = 2 Não limitado r +3, ‒ +3, ‒ Processo de soldagem Denominação da junta Espessura do Metal Base (U = ilimitada) Preparação em Chanfro Posiçõe s de soldage m permiti das Gás de proteção para FCAW Notas T1 T2 Abertura de raiz Ângulo de abertura do chanfro Face de raiz Raio do bisel SMAW B-U6 U ― R = 0 a 3  = 45 f = 3 r = 6 Todas ― d, e, j R = 0 a 3  = 20 f = 3 r = 6 P, SC ― d, e, j C-U6 U U R = 0 a 3  = 45 f = 3 r = 6 Todas ― d, e, g, j R = 0 a 3  = 20 f = 3 r = 6 P, SC ― d, e, g, j GMAW FCAW B-U6-GF U ― R = 0 a 3  = 20 f = 3 r = 6 Todas Não Requerido a, d, j C-U6-GF U U R = 0 a 3  = 20 f = 3 r = 6 Todas Não Requerido a, d, g, j Solda de chanfro em duplo U (7) Junta de topo (B) TODAS AS DIMENSÔES EM mm Tolerâncias Como detalhado (ver 3 13 1) Como ajustado (ver 3 13 1) Para B-U7 e B-U7-GF R +2, ‒ +2, ‒3  = +10 , ‒ +10 , ‒5 f +2, ‒ Não limitado r +6, ‒ 2 Para B-U7-S R = +0 +2, ‒  = +10 , ‒ +10 , ‒5 f + , ‒6 2 r +6, ‒ 2 Processo de soldagem Denominação da junta Espessura do Metal Base (U = ilimitada) Preparação em Chanfro Posições de soldagem permitidas Gás de proteção para FCAW Notas T1 T2 Abertura de raiz Ângulo de abertura do chanfro Face de raiz Raio do bisel SMAW B-U7 U ― R = 0 a 3  = 45 f = 3 r = 6 Todas ― d, e, h, j R = 0 a 3  = 20 f = 3 r = 6 P, SC ― d, e, h, j GMAW FCAW B-U7-GF U ― R = 0 a 3  = 20 f = 3 r = 6 Todas Não Requerido a, d, h, j SAW B-U7-S U ― R = 0  = 20 f = 1/4 máx r = 6 P ― d, h, j Figura 3.4 (continuação) - Detalhes Pré-Qualificados de Juntas Soldadas em Chanfro CJP (ver 3.13) (Dimensões em Milímetros)
  • 135.
    AWS D1.1/D1.1M:2010 3-PRE QUALIFICAÇÃO DE WPSS 115 Ver notas na página 140 Solda de chanfro em J (8) Junta de topo (B) TODAS AS DIMENSÕES EM mm Tolerâncias Como detalhado (ver 3 13 1) Como ajustado (ver 3 13 1) B-U8 e B-U8-GF R +2, ‒ +2, ‒3  = +10 , ‒ +10 , ‒5 f +3, ‒ Não limitado r +6, ‒ 2 Para B-U8-S R = +0 +3, ‒  = +10 , ‒ +10 , ‒5 f + , ‒3 2 r +6, ‒ 2 Processo de soldagem Denominação da junta Espessura do Metal Base (U = ilimitada) Preparação em Chanfro Posições de soldagem permitidas Gás de proteção para FCAW Notas T1 T2 Abertura de raiz Ângulo de abertura do chanfro Face de raiz Raio do bisel SMAW B-U8 U ― R = 0 a 3  = 45 f = 3 r = 10 Todas ― c, d, e, j GMAW FCAW B-U8-GF U ― R = 0 a 3  = 30 f = 3 r = 10 Todas Não Requerido a, c, d, j SAW B-U8-S U ― R = 0  = 45 f = 6 máx r = 10 P ― c, d, j Solda de chanfro em J (8) Junta em T (T) Junta de ângulo (C) TODAS AS DIMENSÕES EM mm Tolerâncias Como detalhado (ver 3 13 1) Como ajustado (ver 3 13 1) TC-U8a e TC-U8a-GF R +2, ‒ +2, ‒3  = +10 , ‒ +10 , ‒5 f +2, ‒ Não limitado r +6, ‒ 2 Para TC-U8a-S R = +0 +6, ‒  = +10 , ‒ +10 , ‒5 f + , ‒3 2 r = +6, ‒ 2 Processo de soldagem Denominação da junta Espessura do Metal Base (U = ilimitada) Preparação em Chanfro Posições de soldagem permitidas Gás de proteção para FCAW Notas T1 T2 Abertura de raiz Ângulo de abertura do chanfro Face de raiz Raio do bisel SMAW TC-U8a U U R = 0 a 3  = 45 f = 3 r = 10 Todas ― d, e, g, j, k R = 0 a 3  = 45 f = 3 r = 10 P, SC ― d, e, g, j, k GMAW FCAW TC-U8a-GF U U R = 0 a 3  = 45 f = 3 r = 10 Todas Não Requerido a, d, g, j, k SAW TC-U8a-S U U R = 0  = 45 f = 6 máx r = 10 P ― d, g, j, k Figura 3.4 (continuação)— Detalhes Pré-Qualificados de Juntas Soldadas em Chanfro CJP (ver 3.13) (Dimensões em Milímetros)
  • 136.
    AWS D1.1/D1.1M:2010 3-PRE QUALIFICAÇÃO DE WPSS 116 Ver notas na página 140 Solda de chanfro em J duplo (9) Junta de topo (B) TODAS AS DIMENSÕES EM mm Tolerâncias Como detalhado (ver 3 13 1) Como ajustado (ver 3 13 1) R +2, ‒ +2, ‒3  = +10 , ‒ +10 , ‒5 f +2, ‒ Não limitado r +3, ‒ 2 Processo de soldagem Denominação da junta Espessura do Metal Base (U = ilimitada) Preparação em Chanfro Posições de soldagem permitidas Gás de proteção para FCAW Notas T1 T2 Abertura de raiz Ângulo de abertura do chanfro Face de raiz Raio do bisel SMAW B-U9 U ― R = 0 a 3  = 45 f = 3 r = 10 Todas ― c, d, e, h, j GMAW FCAW B-U9-GF U ― R = 0 a 3  = 30 f = 3 r = 10 Todas Não Requerido a, c, d, h, j Solda de chanfro em J duplo (9) Junta em T (T) Junta de ângulo (C) TODAS AS DIMENSÕES EM mm Tolerâncias Como detalhado (ver 3 13 1) Como ajustado (ver 3 13 1) R +2, ‒ +2, ‒3  = +10 , ‒ +10 , ‒5 f +2, ‒ Não limitado r +3, ‒ 2 Processo de soldagem Denominação da junta Espessura do Metal Base (U = ilimitada) Preparação em Chanfro Posições de soldagem permitidas Gás de proteção para FCAW Notas T1 T2 Abertura de raiz Ângulo de abertura do chanfro Face de raiz Raio do bisel SMAW TC-U9a U U R = 0 a 3  = 45 f = 3 r = 10 Todas ― d, e, g, h, j, k R = 0 a 3  = 30 f = 3 r = 10 P, SC ― d, e, g, h, j, k GMAW FCAW TC-U9a-GF U U R = 0 a 3  = 30 f = 3 r = 10 Todas Não Requerido a, d, g, h, j, k Figura 3.4 (continuação) - Detalhes Pré-Qualificados de Juntas Soldadas em Chanfro CJP (ver 3.13) (Dimensões em Milímetros)
  • 137.
    AWS D1.1/D1.1M:2010 3-PRE QUALIFICAÇÃO DE WPSS 117 Figura 3.5 - Detalhes Pré-qualificados de Junta para Conexões Tubulares em T-, Y-, K-, e PJP (ver 3.12.4)
  • 138.
    AWS D1.1/D1.1M:2010 3-PRE QUALIFICAÇÃO DE WPSS 118 Figura 3.5 (Continuação) - Detalhes Pré-qualificados de Junta para Conexões Tubulares em T-, Y-, K-, e PJP (ver 3.12.4)
  • 139.
    AWS D1.1/D1.1M:2010 3-PRE QUALIFICAÇÃO DE WPSS 119 Notas: 1. t = espessura da seção mais fina. 2. Bisel para aresta chanfrada exceto em zonas de transição e calcanhar. 3. Abertura de raiz: 0 in a 3/16 in [5 mm]. 4. Não pré-qualificado para abaixo de 30°. 5. Tamanho de solda (garganta efetiva) tw ≥ t; Dimensão de Perda Z mostrada na Tabela 2.9. 6. Cálculos por 2.25.1.3 devem ser feitos para comprimento de perna menor que 1.5t, como mostrado. 7. Para Seção de Caixa, a preparação de junta para transições de ângulo deve fornecer uma transição suave de um detalhe para outro. A soldagem deve ser conduzida continuamente ao redor dos cantos, com os cantos completamente construídos e todos os inícios e interrupções de solda em faces planas. 8. Ver Anexo K para definição de ângulo diedro local, 9. W.P. = posto de trabalho Figura 3.5 (Continuação) - Detalhes Pré-qualificados de Junta para Conexões Tubulares em T-, Y-, K-, e PJP (ver 3.12.4)
  • 140.
    AWS D1.1/D1.1M:2010 3-PRE QUALIFICAÇÃO DE WPSS 120 Observações: 1. Os detalhes A, B, C, D como mostrado na Figura 3.8 e todas as observações da Tabela 3.6 aplicam-se. 2. A preparação de junta para soldas de ângulo deve fornecer uma transição suave de um detalhe para outro. A soldagem deve ser conduzida continuamente ao redor dos cantos, com os cantos completamente construídos e todos os inícios e interrupções de arco no âmbito de faces planas. 3. Referências à Figura 3.8 incluem Figuras 3.9 e 3.10, conforme apropriado para a espessura (ver 2.21.6.7). Figura 3.6 - Detalhes Pré-qualificados de Junta para Conexões Tubulares em T-, Y-, K-, e CJP (ver 3.15.5)
  • 141.
    AWS D1.1/D1.1M:2010 3-PRE QUALIFICAÇÃO DE WPSS 121 Figura 3.7 – Definições e Seleções Detalhadas para Conexões Tubulares Pré- qualificadas em K-,T-,Y-, e CJP (ver 3.13.5 e Tabela 3.5)
  • 142.
    AWS D1.1/D1.1M:2010 3-PRE QUALIFICAÇÃO DE WPSS 122 Observações: 1. Ver Tabela 3.6 para dimensões tb L, R, W,  ϕ 2. Perfil de solda plano de padrão mínimo deve ser como mostrado por linha sólida. 3. Um perfil côncavo, como mostrado por linhas tracejadas, também deve ser aplicável. 4. Convexidade, sobreposição, etc. devem ser sujeitos às limitações de 5.24. 5. A espessura dos membros de ramificação, tb, deve estar sujeita às limitações de 2.21.6.7. Figura 3.8 – Detalhes Pré-qualificados de Junta para Soldas em Chanfro CJP em Conexões Tubulares em T-, Y-, e K- - Perfis Planos Padrão para Espessura Limitada (ver 3.13.5)
  • 143.
    AWS D1.1/D1.1M:2010 3-PRE QUALIFICAÇÃO DE WPSS 123 Observações: 1. Os esboços ilustram perfis padrão alternativos com filete de extremidade. 2. Ver 2.21.6.7 para faixa aplicável de espessura tb. 3. O tamanho mínimo de solda de filete, F = tb/2, também deve estar sujeito aos limites da Tabela 5.8. 4. Ver Tabela 3.6 para dimensões tb L, R, W,  ϕ 5. Convexidade e sobreposição devem estar sujeitas às limitações de 5.24. 6. Perfis côncavos, como mostrado por linhas tracejadas também deve ser aceitável. Figura 3.9 – Detalhes Pré-qualificados de Junta para Soldas em Chanfro CJP em Conexões Tubulares em T-, Y-, e K- - Perfil com Filete de Extremidade para Espessura Intermediária (ver 3.13.5)
  • 144.
    AWS D1.1/D1.1M:2010 3-PRE QUALIFICAÇÃO DE WPSS 124 Observações: 1. Ilustrando perfis de solda melhorados para 2.21.6.6(1) soldagem em bruto e 2.21.6.6(2) completamente retificado. 2. Para seções pesadas ou aplicações com fadiga crítica como indicado em 2.21.6.7. 3. Ver Tabela 3.6 para dimensões tb L, R, W,  ϕ Figura 3.10 – Detalhes Pré-qualificados de Junta para Soldas em Chanfro CJP em Conexões Tubulares em T-, Y-, e K- - Perfil Côncavo Melhorado para Seções Pesadas ou Fadiga (ver 3.13.5)
  • 145.
    AWS D1.1/D1.1M:2010 3-PRE QUALIFICAÇÃO DE WPSS 125 a Detalhe (D). Aplicar dimensão de perda Z da Tabela 2.2 para determinar garganta efetiva. b O detalhe (D) não deve ser pré-qualificado para abaixo de 30 . Para qualificações de soldador, ver Tabela 4.10. Observações: 1. (En), (E'n) = Gargantas efetivas dependentes da magnitude da abertura de raiz (Rn) (ver 5.22.1). (n) representa de 1 a 5. 2. t = espessura da parte mais fina 3. Não pré-qualificado para GMAW-S ou GTAW. Figura 3.11 – Detalhes Pré-qualificados de Juntas Oblíquas em T- (Não Tubulares) (ver 3.9.3)
  • 146.
    3- PRE QUALIFICAÇÃODE WPSS AWS D1.1/D1.1M:2010 140 4. Qualificação 4.1 Escopo Os requisitos para teste de qualificação de especificações de procedimento de soldagem (WPSs) e equipe de soldagem são descritos a seguir: Parte A—Requisitos Gerais. Essa parte abrange requisitos gerais de ambos os requisitos de desempenho WPS e de equipe de soldagem. Parte B—Especificação de Procedimento de Soldagem (WPS). Essa parte abrange a qualificação de uma WPS que não é classificada como pré- qualificada em conformidade com a Cláusula 3. Parte C—Qualificação de Desempenho. Essa parte abrange testes de qualificação de desempenho requeridos pelo código para determinar a habilidade do soldador, do operador de soldagem ou do soldador ponteador para produzir boas soldagens. Parte D—Requisitos para Teste CVN. Essa parte abrange requisitos gerais e procedimentos para teste CVN quando especificado pelo documento de contrato. Parte A Requisitos Gerais 4.2 Geral Os requisitos para teste de qualificação de WPSs e equipe de soldagem (definida como soldadores, operadores de soldagem e soldadores provisórios) são descritos nessa seção. 4.2.1 Especificação de Procedimento de Soldagem (WPS). Exceto para WPSs pré-qualificadas em conformidade com a Cláusula 3, uma WPS para uso em soldagem de produção deve ser qualificada em conformidade com a Cláusula 4, Parte B. Evidência documentada apropriada de qualificação WPS anterior pode ser usada. 4.2.1.1 Responsabilidade de Qualificação. Cada fabricante ou Empreiteiro deve conduzir os testes requeridos por este código para qualificar a WPS. WPSs propriamente documentadas qualificadas sob as provisões deste código por uma empresa que mais tarde tenha seu nome mudado devido a uma ação voluntária ou consolidação com uma empresa controladora pode utilizar o novo nome em seus documentos WPS enquanto mantém os registros de qualificação de suporte PQR com o antigo nome da empresa. 4.2.1.2 Qualificação WPS para Outros Padrões. A aceitação de qualificação para outros padrões é responsabilidade do Engenheiro, a ser exercida com base na estrutura específica, ou condições de serviço, ou ambos. A Série B2.1-X-XXX da AWS em Especificações Padrão de Procedimento de Soldagem pode, dessa forma, ser aceita para uso neste código. 4.2.1.3 Requisitos de Teste CVN. Quando requerido por documentos de contrato, os testes CVN devem ser incluídos na qualificação WPS. Os testes, requisitos e procedimentos CVN devem estar em conformidade com as provisões da Parte D dessa seção, ou como especificado em documentos de contrato. 4.2.2 Qualificação de Desempenho da Equipe de Soldagem. Soldadores, operadores de soldagem e soldadores ponteadores a serem empregados sob este código, e usando processos de soldagem a arco com proteção SMAW, SAW, GMAW, GTAW, FCAW, ESW, ou EGW, devem ter sido qualificados pelos testes aplicáveis como descrito na Parte C desta seção (ver Comentário). 4.2.2.1 Qualificação de Desempenho Anterior. Testes de qualificação de desempenho anteriores de soldadores, operadores de soldagem e soldadores ponteadores que estejam propriamente documentados são aceitáveis com a aprovação do Engenheiro. A aceitação de qualificação de desempenho de outros padrões é responsabilidade do Engenheiro, a ser exercida com base na estrutura específica, ou condições de serviço, ou ambos. 4.2.2.2 Responsabilidade de Qualificação. Cada fabricante ou Empreiteiro deve ser responsável pela qualificação de soldadores, operadores de soldagem e soldadores ponteadores, seja a qualificação conduzida pelo fabricante, Empreiteiro, ou uma agência de testes independente. 4.2.3 Período de Efetividade
  • 147.
    AWS D1.1/D1.1M:2012 `4. QUALIFICAÇÃO 127 4.2.3.1 Soldadores e Operadores de Soldagem. A qualificação do soldador ou operador de soldagem como especificado neste código deve ser considerada como permanecendo em vigor indefinidamente a menos que (1) o soldador não esteja envolvido em um dado processo de soldagem para o qual o soldador ou operador de soldagem é qualificado por um período que excede seis meses ou a menos que (2) haja alguma razão específica para questionar a habilidade de um soldador ou operador de soldagem (ver 4.33.1). 4.2.3.2 Soldadores Ponteadores. Um soldador ponteador que passe o teste descrito na Parte C ou aqueles testes requeridos para qualificação de soldador deve ser considerado elegível a realizar soldagem provisória indefinidamente nas funções e com o processo para o qual o soldador ponteador é qualificado a menos que haja alguma razão específica para questiona habilidade do soldador ponteador (ver 4.33.2). 4.3 Requisitos Comuns para Qualificação de Desempenho WPS e de Equipe de Soldagem 4.3.1 Qualificação para Edições Anteriores. Qualificações que foram realizadas para e adequaram-se aos requisitos de edições anteriores de D1.1 da AWS, ou D1.0 d a AWS ou D2.0 da AWS enquanto essas edições estavam em vigor são válidas e podem ser usadas. O uso de edições anteriores deve ser proibido para novas qualificações em lugar das edições atuais, a menos que a edição anterior específica esteja especificada nos documentos de contrato. 4.3.2 Envelhecimento. Quando permitido pela especificação de metal de adição aplicável ao metal de solda sendo testado, espécimes de teste completamente soldados podem ser envelhecidos a 200°F a 220°F [95°C a 105°C] por 48 ± 2 horas. 4.3.3 Registros. Registros dos resultados de teste devem ser mantidos pelo fabricante ou Empreiteiro e devem ser disponibilizados para aqueles autorizados a examiná-los. 4.3.4 Posições de Soldas. Todas as soldas devem ser classificadas como plana (F), horizontal (H), vertical (V), e suspensa (OH), em conformidade com as definições mostradas nas Figuras 4.1 e 4.2. Posições de montagem de teste são mostradas em: (1) Figura 4.3 (soldas em chanfro em placa) (2) Figura 4.4 (soldas em chanfro em cano ou tubulação) (3) Figura 4.5 (soldas de filete em placa) (4) Figura 4.6 (soldas de filete em cano ou tubulação) Parte B Especificação de Procedimento de Soldagem (WPS) 4.4 Posições de Soldagem de Produção Qualificadas As posições de soldagem de produção qualificadas por uma WPS devem conformar-se aos requisitos da Tabela 4.1. 4.5 Tipo de Testes de Qualificação O tipo e número de testes de qualificação requeridos para qualificar uma WPS para uma dada espessura, diâmetro, ou ambos, deve conformar-se à Tabela 4.2 (CJP), Tabela 4.3 (PJP) ou Tabela 4.4 (filete). Detalhes sobre o NDT individual e requisitos de teste mecânico são achados nas seguintes subcláusulas: (1) Inspeção Visual (ver 4.9.1) (2) NDT (ver 4.9.2) (3) Flexão de face, raiz e lateral (ver 4.9.3.1) (4) Tensão de Seção Reduzida (ver 4.9.3.4) (5) Tensão de Metal Depositado (ver 4.9.3.6) (6) Análise macrográfica (ver 4.9.4) 4.6 Tipos de Solda para Qualificação WPS Para o propósito de qualificação WPS, os tipos de solda devem ser classificados como segue: (1) Soldas em chanfro CJP para Conexões Não- Tubulares (ver 4.10) (2) Soldas em chanfro PJP para Conexões Não- Tubulares (ver 4.11) (3) Soldas de Filete para Conexões Tubulares e Não-Tubulares (ver 4.12) (4) Soldas em chanfro CJP para Conexões Tubulares (ver 4.13) (5) Soldas em chanfro PJP para Conexões Tubulares em T-, Y-, e K- e Juntas de Topo (ver 4.14) (6) Soldas de Tampão para Conexões Tubulares e Não-Tubulares (ver 4.15) 4.7 Preparação de WPS O fabricante ou Empreiteiro deve preparar uma WPS escrita que especifica todas as variáveis essenciais aplicáveis referidas in 4.8. O valor específico para essas variáveis WPS deve ser obtido do registro de qualificação de procedimento (PQR), que deve servir como uma confirmação por escrito de uma qualificação WPS bem sucedida.
  • 148.
    AWS D1.1/D1.1M:2012 `4. QUALIFICAÇÃO 128 4.8 Variáveis Essenciais 4.8.1 SMAW, SAW, GMAW, GTAW, e FCAW. Modificações além das limitações de variáveis essenciais de PQR para os processos SMAW, SAW, GMAW, GTAW, e FCAW mostrados na Tabela 4.5 e na Tabela 4.6 (quando teste CVN é especificado) deve requerer requalificação da WPS (ver 4.2.1.3). 4.8.2 ESW e EGW. Ver Tabela 4.7 para as modificações de variável essencial de PQR que requerem requalificação WPS para os processos EGW e ESW. 4.8.3 Qualificação de Metal Base. WPSs que requerem qualificação que usa metais base listados na Tabela 3.1 devem qualificar outros grupos de metal base em conformidade com a Tabela 4.8. WPSs para metais base não listados na Tabela 3.1 ou Tabela 4.9 devem ser qualificados em conformidade com a Cláusula 4. O uso de metais base não listados deve ser aprovado pelo Engenheiro. WPSs com aços listados na Tabela 4.9 devem também qualificar aços da Tabela 3.1 ou Tabela 4.9 em conformidade com a Tabela 4.8. A Tabela 4.9 contém recomendações para corresponder metal de adição de resistência e temperaturas mínimas de pré-aquecimento e interpasse para A 514, A 517, A 709 Graus 100 e 100 W da ASTM, A 710 aços Grau A (Classe 1 e 3) da ASTM, e A 871 Graus 60 e 65 da ASTM. 4.8.4 Temperatura de Pré-aquecimento e Interpasse. A temperatura mínima de pré-aquecimento e interpasse deveria ser estabelecida com base na composição do aço, como mostrado na Tabela 3.1. De forma alternativa, métodos reconhecidos de predição ou diretrizes como os fornecidos no Anexo I, ou outros métodos, podem ser usados. Temperaturas de pré- aquecimento e interpasse mais baixas que o requerido pela Tabela 3.2 ou calculado pelo Anexo I podem ser usadas contanto que sejam aprovadas pelo Engenheiro e qualificadas por teste WPS. Os métodos do Anexo I são baseados em testes de laboratório com trincas e podem prever temperaturas de pré-aquecimento mais altas que a temperatura mínima mostrada na Tabela 3.2. O Anexo I pode ser útil para identificar situações em que o risco de trincas é maior devido a composição, restrições, nível de hidrogênio ou aporte de calor de soldagem mais baixo onde pré- aquecimento mais alto pode ser garantido. Alternativamente, o Anexo I pode ajudar a definir condições sob as quais trinca de hidrogênio é improvável e em que os requisitos mínimos da Tabela 3.2 podem ser relaxados com segurança. 4.9 Métodos de Teste e Critérios de Aceitação para Qualificação WPS As montagens soldadas de teste em conformidade com 4.9.2 devem ter espécimes de teste preparados ao cortar a placa, cano ou tubulação de teste como mostrado nas Figuras 4.7 a 4.11, o que for aplicável. Os espécimes de teste devem ser preparados para o teste em conformidade com as Figuras 4.12, 4.13, 4.14, e 4.18, conforme aplicável. 4.9.1 Inspeção Visual de Soldas. A qualificação visual aceitável para qualificação de soldas em chanfro e de filete (excluindo guias de solda) deve estar em conformidade com os seguintes requisitos, conforme aplicável: 4.9.1.1 Inspeção Visual de Soldas em Chanfro. Soldas em chanfro devem atender aos seguintes requisitos: (1) Qualquer trinca deve ser considerada inaceitável, a despeito do tamanho. (2) Todas as crateras devem ser preenchidas até a seção transversal completa da solda. (3) Reforço de solda não deve exceder 1/8 in [3 mm]. O perfil de solda deve estar em conformidade com a Figura 5.4 e deve ter fusão completa. (4) A mordedura não deve exceder 1/32 in [1 mm]. (5) A raiz de solda para chanfros CJP deve ser inspecionada, e não deve ter quaisquer trincas, fusão incompleta, ou penetração de junta inadequada. (6) Para chanfros CJP soldados a partir de um lado sem reforço, a concavidade de raiz ou fundido através deve conformar-se ao seguinte: (a) A concavidade máxima de raiz deve ser 1/16 in [2 mm], dado que a espessura total da solda seja igual a ou maior que a do metal base. (b) O fundido através máximo deve ser 1/8 in [3 mm] exceto para conexões tubulares em conexões em T-, Y-, e K-, em que o fundido através não é limitado. 4.9.1.2 Inspeção Visual de Soldas de Filete. Soldas de filete devem atender aos seguintes requisitos: (1) Qualquer trinca deve ser considerada inaceitável, a despeito de seu tamanho. (2) Todas as crateras devem ser preenchidas até a seção transversal completa da solda. (3) Os tamanhos de perna da solda de filete não devem ser menores que os tamanhos de perna requeridos. (4) O perfil de solda deve atender aos requisitos da Figura 5.4. (5) A mordedura do metal base não deve exceder 1/32 in [1 mm].
  • 149.
    AWS D1.1/D1.1M:2012 `4. QUALIFICAÇÃO 129 4.9.2 NDT. Antes de preparar espécimes de teste mecânico, a placa, cano ou tubulação de teste de qualificação deve ser testado de forma não destrutiva para checar a estabilidade como segue: 4.9.2.1 RT ou UT. RT ou UT deve ser usado. O comprimento completo da solda em placas de teste, exceto os comprimentos de descarte em cada extremidade, deve ser examinado em conformidade com a Cláusula 6, Parte E ou F. Para tubulares, a circunferência inteira da solda completa deve ser examinada em conformidade com a Cláusula 6, Parte C. 4.9.2.2 Critérios de Aceitação RT ou UT. Para qualificação aceitável, a solda, como revelado por RT ou UT, deve conformar-se aos requisitos da Cláusula 6, Parte C. 4.9.3 Teste Mecânico. O teste mecânico deve ser como segue: 4.9.3.1 Espécimes de Flexão de Raiz, Face e Lateral (ver Figura 4.12 para flexões de raiz e de face, Figura 4.13 para flexões laterais). Cada espécime deve ser flexionado em um separador de teste de flexão que atenda os requisitos mostrados nas Figuras 4.15 a 4.17 ou que esteja substancialmente em conformidade com aquelas figuras, contanto que o raio máximo de flexão não seja excedido. Quaisquer meios convenientes podem ser usados para mover o membro êmbolo com relação ao membro matriz. O espécime deve ser posicionado no membro matriz do separador com a solda a meio vão. Espécimes de flexão de face devem ser posicionados com a face da solda direcionada para a folga. Espécimes de flexão de raiz e solda de filete estáveis devem ser posicionados com a raiz da solda direcionada para a folga. Espécimes de flexão lateral devem ser posicionados com o lado que mostra maior descontinuidade, se houver, direcionado para a folga. O êmbolo deve forçar o espécime para dentro da matriz até que o espécime fique em forma de U. A solda e HAZs devem estar centralizados e inteiramente dentro da porção flexionada do espécime após o teste. Ao usar o separador integrado, o espécime deve estar firmemente preso em uma extremidade para que não haja deslizamento do espécime durante a operação de flexão. A solda e HAZs devem estar completamente dentro da porção flexionada do espécime após o teste. Espécimes de teste devem ser removidos do separador quando o rolo externo tiver sido movido 180° do ponto de partida. 4.9.3.2 Espécimes de Flexão Longitudinal. Quando combinações de material diferem marcadamente em propriedades de flexão mecânica, como entre dois materiais base ou entre o metal de solda e o metal base, testes de flexão longitudinal (face e raiz) podem ser usados em lugar dos testes transversais de flexão de face e de raiz. As montagens de teste soldadas em conformidade com 4.9.2 devem ter espécimes de teste preparados ao cortar a placa de teste como mostrado na Figura 4.10 ou 4.11, a que for mais aplicável. Os espécimes de teste para o teste de flexão longitudinal devem ser preparados para teste como mostrado na Figura 4.12. 4.9.3.3 Critérios de Aceitação para Testes de Flexão. A superfície convexa do espécime de teste de flexão deve ser visualmente examinada em busca de descontinuidades de superfície. Para aceitação, a superfície não deve conter descontinuidades que excedam as seguintes dimensões: (1) 1/8 in [3 mm] medido em qualquer direção na superfície (2) 3/8 in [10 mm]—a soma das maiores dimensões de todas as descontinuidades excedendo 1/32 in [1 mm], mas menor que ou igual a 1/8 in [3 mm] (3) 1/4 in [6 mm]—a trinca de canto máxima, exceto quando essa trinca de canto resulta de inclusão visível de escória ou outro tipo de descontinuidade de fusão, deve ter no máximo de 1/8 in [3 mm]. Espécimes com trincas de canto que excedam 1/4 in [6 mm] sem evidência de inclusão de escória ou outro tipo de descontinuidade de fusão devem ser desconsiderados, e um espécime de teste substituto da ligação soldada original deve ser testado. 4.9.3.4 Espécimes de Tensão de Seção Reduzida (ver Figura 4.14). Antes do teste, as menores largura e espessura correspondentes da seção reduzida devem ser medidas O espécime deve ser rompido sob carga de tensão, e a carga máxima deve ser determinadas. A área de seção transversal deve ser obtida pela multiplicação da largura pela espessura. A resistência à tração deve ser obtida ao dividir a carga máxima pela área de seção transversal. 4.9.3.5 Critérios de Aceitação de Teste de Tensão de Seção Reduzida. A resistência à tração não deve ser menor que o mínimo de faixa de tensão especificada do metal base usado. 4.9.3.6 Espécime de Tensão de Metal Depositado (ver Figura 4.18). O espécime de teste deve ser testado em conformidade com A 370, Mechanical Testing of Steel Products, da ASTM. 4.9.4 Análise Macrográfica. Os espécimes de teste de solda devem ser preparados com um acabamento adequado para exame macrográfico. Uma solução adequada deve ser usada para textura para dar uma definição clara da solda. 4.9.4.1 Critérios de Aceitação para Análise Macrográfica. Para qualificação aceitável, o espécime de teste, quando inspecionado visualmente, deve estar em conformidade com os seguintes requisitos: (1) Soldas em chanfro PJP; o tamanho de solda real deve ser igual a ou maior que o tamanho de solda especificado, (E). (2) Soldas de filete devem ter fusão até a raiz da junta, mas não necessariamente além. (3) O tamanho mínimo de perna deve atender o tamanho de solda de filete especificado. (4) As soldas em chanfro PJP e soldas de filete devem ter o seguinte:
  • 150.
    AWS D1.1/D1.1M:2012 `4. QUALIFICAÇÃO 130 (a) nada de trincas (b) fusão completa entre camadas adjacentes de metal de solda e entre metal de solda e metal base (c) perfis de solda em conformidade co detalhe e specificado, mas sem qualquer das variações proibidas em 5.24 (d) nenhuma mordedura excedendo 1/32 in [1 mm] 4.9.5 Reteste. Se qualquer um dos espécimes testados não atender aos requisitos de teste, dois retestes para aquele tipo particular de espécime de teste devem ser realizados com espécimes cortados do mesmo material de qualificação WPS. Os resultados de ambos os espécimes de teste devem atender aos requisitos de teste. Para material com espessura acima de 1-1/2 in [38 mm], a falha de um espécime deve requerer o teste de todos os espécimes de mesmo tipo a partir de dois locais adicionais no material de teste. 4.10 Soldas em Chanfro CJP para Conexões Não Tubulares Ver Tabela 4.2(1) para os requisitos para qualificar uma WPS de uma solda CJP tubulares. Ver Figuras 4.9 –4.11 para a placa de teste apropriada. 4.10.1.1 Juntas de Ângulo ou em T-. Espécimes de teste para soldas em chanfro em juntas de ângulo e em T- devem ser juntas de topo que têm a mesma configuração de chanfro da junta de ângulo ou em T- a ser usada na construção, exceto que a profundidade de chanfro não precisa exceder 1 in [25 mm]. 4.11 Soldas em Chanfro PJP para Conexões Não Tubulares 4.11.1 Tipo e Número de Espécimes a serem Testados. O tipo e número de espécimes que devem ser testados para qualificar uma WPS são mostrados na Tabela 4.3. Uma amostra de solda deve ser feita usando o tipo de projeto de chanfro e WPS a serem usados na construção, exceto que a profundidade do chanfro não precisa exceder 1 in [25 mm]. Para a análise macrográfica requerida abaixo, qualquer aço dos Grupos I, II, e III da Tabela 3.1 pode ser usado para qualificar o tamanho de solda em quaisquer aços ou combinações de aço nestes grupos. Se a solda em chanfro PJP será usada em juntas de ângulo ou juntas em T-, a junta de topo deve ter uma placa restritiva temporária no plano da face quadrada para simular a configuração de junta em T-. As amostras de solda devem ser testadas como segue: 4.11.2 Verificação de Tamanho de Solda por Análise Macrográfica. Para WPSs que estão em todos os aspectos em conformidade com a Cláusula 4, três análises macrográficas de seção transversal devem ser preparadas para demonstrar que o tamanho de solda designado (obtido dos requisitos da WPS) foi atendido. 4.11.3 Verificação de WPS de Chanfro CJP por Análise Macrográfica. Quando uma WPS foi qualificada para uma solda em chanfro CJP e é aplicada às condições de soldagem de uma solda em chanfro PJP, três espécimes de análise macrográfica de seção transversal devem ser requeridos para demonstrar que o tamanho de solda especificado deve ser igualado ou excedido. 4.11.4 Outras Verificações WPS por Análise Macrográfica. Se uma WPS não é abordada por 4.11.2 ou 4.11.3, ou se as condições de soldagem não atendem a um status pré-qualificado, ou se elas não foram usadas e testadas para uma solda CJP em uma junta de topo, então uma amostra de junta deve ser preparada e a primeira operação deve ser fazer um espécime de análise macrográfica para determinar o tamanho de solda da junta. Então, o material em excesso deve ser retirado do fundo da junta para a espessura do tamanho de solda. Espécimes de teste de tensão e flexão devem ser preparados e testes realizados, como requerido para soldas em chanfro CJP (ver 4.10). 4.11.5 Soldas em Chanfro Curvado. Os tamanhos de solda efetivos para soldas em chanfro curvado qualificadas devem ser determinados pelo seguinte: (1) Seções de teste devem ser usadas para verificar que o tamanho de solda efetivo seja obtido consistentemente. (2) Para um dado conjunto de condições WPS, se o Empreiteiro tem demonstrado produção consistente de tamanhos efetivos de solda maiores que os mostrados na Tabela 2.1, o Empreiteiro pode estabelecer tais tamanhos efetivos maiores de solda por qualificação. (3) Qualificação requerida por (2) deve consistir da divisão do membro arredondado, normal a seu eixo, a meia distância e extremidades da solda. Tal divisão deve ser feita em um número de combinações de tamanhos de material representativos da faixa usada pelo Empreiteiro na construção. 4.12 Soldas de Filete para Conexões Tubulares e Não Tubulares 4.12.1 Tipo e Número de Espécimes. Exceto quando de outra forma permitido pela Cláusula 4, o tipo e número de espécimes que devem ser testados para qualificar WPS de uma solda de filete de passe único e/ou solda de filete de passe múltiplosão mostrados na Tabela 4.4. O teste de qualificação pode ser para uma solda de filete de passe único ou solda de filete de passe múltiplo ou ambos. 4.12.2 Teste de Solda de Filete. Uma junta em T- de filete soldada, como mostrado na Figura 4.19 para placa ou Figura 4.20 para cano (Detalhe A ou Detalhe B), deve ser feita para cada WPS e posição a ser usada na construção. É requerido teste para o tamanho máximo de solda de filete de passe único e para o tamanho mínimo de solda de filete de passe múltiplo usados em construção. Esses dois testes de solda de filete podem ser combinados em um único teste de ligação soldada ou montagem ou individualmente qualificados co mo qualificações independentes. Cada ligação soldada deve ser cortada perpendicularmente à direção de soldagem em locais
  • 151.
    AWS D1.1/D1.1M:2012 `4. QUALIFICAÇÃO 131 mostrados na Figura 4.19 ou Figura 4.20, conforme aplicável. Espécimes representando uma face de cada corte devem constituir um espécime de análise macrográfica e devem ser testados em conformidade com 4.9.4. 4.12.3 Teste de Verificação de Consumíveis. Se o consumível de soldagem proposto e a WPS proposta para soldar a placa de teste ou cano de teste da solda de filete descrita em 4.12.2 não forem pré-qualificados ou de outra forma qualificados pela Cláusula 4, isto é: (1) Se os consumíveis de soldagem usados não estiverem em conformidade com as provisões pré- qualificadas da Cláusula 3, e também (2) Se a WPS usando o consumível proposto não foi estabelecida pelo Empreiteiro em conformidade com 4.10 ou 4.11, então uma placa de teste de solda em chanfro CJP deve ser soldada para qualificar a combinação proposta. A placa de teste deve ser soldada como segue: (1) A placa de teste deve ter a configuração de chanfro mostrada na Figura 4.21 (Figura 4.22 para SAW), com reforço de aço. (2) A placa deve ser soldada na posição 1G (plana). (3) O comprimento de placa deve ser adequado para fornecer espécimes de teste requeridos e orientados como mostrado na Figura 4.23. (4) As condições de corrente, voltagem, velocidade de deslocamento e fluxo de gás do teste de soldagem devem ser tão próximas quanto possível daquelas a serem usadas para fazer soldas de filete de produção. Essas condições estabelecem a WPS pela qual, quando soldas de filete de produção são feitas, modificações nas variáveis essenciais serão medidas em conformidade com 4.8. A placa de teste deve ser testada como segue: (1) Dois espécimes de flexão lateral (Figura 4.13) e um espécime de teste de tensão de metal depositado (Figura 4.18) devem ser removidos da placa de teste, como mostrado na Figura 4.23. (2) Os espécimes de teste de flexão devem ser testados em conformidade com 4.9.3.1. Esses resultados de teste devem estar em conformidade com os requisitos de 4.9.3.3. (3) O espécime de teste de tensão deve ser testado em conformidade com 4.9.3.6. O resultado de teste deve determinar o nível de resistência para o consumível de soldagem, que deve estar em conformidade com os requisitos da Tabela 2.3 ou o nível de resistência do metal base sendo soldado. 4.13 Soldas em Chanfro CJP para Conexões Tubulares Soldas em chanfro CJP devem ser classificadas como segue: (1) Juntas de topo CJP com reforço ou goivagem por trás (ver 4.13.1). (2) Juntas de topo CJP sem reforço soldado a partir de apenas um lado (ver 4.13.2). (3) Conexões em T-, Y-, K- com reforço ou goivagem por trás (ver 4.13.3). (4) Conexões em T-, Y-, K- sem reforço soldado a partir de apenas um lado (ver 4.13.4). 4.13.1 Juntas de Topo CJP com Reforço ou Goivagem por Trás. Uma WPS com reforço ou goivagem por trás deve ser qualificada usando o detalhe mostrado na Figura 4.25(A) (com goivagem por trás) ou Figura 4.25(B) (com reforço). 4.13.2 Juntas de Topo CJP sem Reforço Soldado a Partir de Apenas um Lado. Uma WPS sem reforço soldado a partir de apenas um lado deve ser qualificada usando o detalhe de junta mostrado na Figura 4.25(A). 4.13.3 Conexões em T-, Y-, ou K- com Reforço ou Goivagem por Trás. Uma WPS para conexões tubulares em T-, Y-, ou K- com reforço ou goivagem por trás deve ser qualificada usando: (1) o cano OD nominal apropriado selecionado da Tabela 4.2(2), e (2) o detalhe da junta da Figura 4.25(B), ou (3) para cano OD nominal igual ou maior que 24 in [600 mm], uma qualificação de placa em conformidade com 4.9 usando o detalhe de junta da Figura 4.25(B). 4.13.4 Conexões em T-, Y-, ou K- sem Reforço Soldado a Partir de Apenas um Lado. Quando qualificação é requerida, uma WPS para conexões em T- , Y-, ou K- sem reforço soldado a partir de apenas um lado deve requerer o seguinte: 4.13.4.1 WPSs sem Status Pré-qualificado. Para u ma WPS cujas variáveis essenciais estejam for a da faixa pré-qualificada, qualificação para soldas em chanfro tubulares CJP devem requerer o seguinte: (1) Qualificação em conformidade com a Figura 4.27 para canos com diâmetros externos maiores que ou iguais a 4 in [100 mm] ou Figura 4.27 e Figura 4.29 para tubos de caixa. Qualificação em conformidade com a Figura 4.28 para canos com diâmetro externo menor que 4 in [100 mm] ou Figura 4.28 e Figura 4.29 para tubos de caixa. (2) Uma Amostra de Junta ou Maquete Tubular. A amostra de junta ou maquete tubular deve fornecer pelo menos uma seção de análise macrográfica para cada uma das seguintes condições: (a) O chanfro combinando a maior profundidade de chanfro com o menor ângulo de chanfro, ou combinação de chanfros a serem usados: teste com posição vertical de soldagem. (b) A abertura de raiz mais estreita a ser usada com um ângulo de chanfro de 37,5°: um teste a ser soldado na posição plana e um teste a ser soldado na posição suspensa.
  • 152.
    AWS D1.1/D1.1M:2012 `4. QUALIFICAÇÃO 132 (c) A abertura de raiz mais larga a ser usada com um ângulo de chanfro de 37,5°: um teste a ser soldado na posição plana e um teste a ser soldado na posição suspensa. (d) apenas para conexões de caixa correspondentes, o ângulo de chanfro, dimensão de ângulo e raio de canto mínimos a serem usados em combinação: um teste na posição horizontal. (3) O espécime de ensaio macrográfico requerido em (1) e (2) acima deve ser examinado à procura de descontinuidades e deve ter: (a) Nenhuma trinca (b) Fusão completa entre camadas adjacentes de metal de solda e entre metal de solda e metal base (c) Detalhes de solda em conformidade com o detalhe especificado, mas sem nenhuma das variações proibidas em 5.24. (d) Nenhuma mordedura excedendo os valores permitidos em6.9. (e) Para porosidade de 1/32 in [1 mm] ou maior, a porosidade acumulada não deve exceder 1/4 in [6 mm] (f) Nenhuma escória acumulada, da qual a soma da maior dimensão não deve exceder 1/4 in [6 mm] Aqueles espécimes que não estiverem em conformidade com (a) a (f) devem ser considerados inaceitáveis; (b) a (f) não aplicáveis a soldagem backup. 4.13.4.2 Soldas em Chanfro CJP em uma Conexão em T-, Y-, ou K- de WPS com Ângulos Diedros Menores que 30°. A amostra de junta descrita em 4.13.4.1(2)(a) deve ser requerida. Três seções de ensaio macrográfico devem ser cortadas dos espécimes de teste, devem estar em conformidade com os requisitos de 4.13.4.1(3), e devem mostrar a solda teórica requerida (com a devida compensação para soldagens back-up a ser descontada, como mostrado nos Detalhes C e D das Figuras 3.8–3.10) (ver Figura 4.26 para detalhes de junta de teste). 4.13.4.3 Soldas em Chanfro CJP em uma Conexão em T-, Y-, ou K- de WPS Usando GMAW- S. Para conexões em T-, Y-, e K-, quando GMAW-S é usada, qualificação em conformidade com a Cláusula 4 deve ser requerida antes de soldar as configurações padrão de junta detalhadas em 3.13.5. A junta testada deve incorporar um chanfro em bisel simples de 37,5°, offset raiz e anel de restrição como mostrado na Figura 4.27. 4.13.4.4 Ligações Soldadas que Requerem Tenacidade CVN. WPSs para juntas de topo (costuras longitudinais ou circunferenciais) no âmbito de 0,5D de membros de ramificação anexados, em conexão tubular de juntas q u e requeiram testes CVN sob 2.27.2.2, devem ser requeridos para demonstrar energia absorvida CVN de metal de solda de 20 pés libra [27 J] na LAST, (Lowest Anticipated Service Temperature – Temperatura Antecipada de Serviço mais Baixa), ou a 0°F [–18°C], o que for menor. Se especificações AWS para os materiais de soldagem a serem usados não abrangem esse requisito, ou se a soldagem de produção está fora da faixa abordada por teste anterior, por exemplo, testes por especificações de metal de adição AWS, então os testes CVN de metal de solda devem ser feitos durante qualificação WPS, como descrito na Parte D dessa cláusula. 4.14 Conexões em T-, Y-, ou K- e Juntas de Topo Tubulares PJP Quando soldas em chanfro PJP são especificadas, em conexões em T-, Y-, ou K- ou soldas de topo, a qualifi- cação deve estar em conformidade com a Tabela 4.3. 4.15 Soldas de Tampão para Conexões Tubulares e Não Tubulares Quando soldas de tampão são especificadas, qualificação WPS deve estar em conformidade com 4.30. 4.16 Processos de Soldagem que Requerem Qualificação 4.16.1 ESW, EGW, GTAW, e GMAW-S. ESW, EGW, GTAW, e GMAW-S podem ser usados, contanto que as WPSs qualificadas em conformidade com os requisitos da Cláusula 4. Observe que as limitações de variável essencial na Tabela 4.5 para GMAW devem também aplicar-se a GMAW-S. 4.16.2 Outros Processos de Soldagem. Outros processos de soldagem não listados em 3.2.1 ou 4.16.1 podem ser usados, contanto que as WPSs sejam qualificadas por teste. A limitação de variáveis essenciais aplicáveis a cada processo de soldagem deve ser estabelecida pelo Empreiteiro desenvolvendo a WPS e aprovada pelo Engenheiro. Faixas de variável essencial devem ser baseadas em evidência documentada de experiência com o processo, ou uma série de testes deve ser conduzida para estabelecer limites de variável essencial. Qualquer alteração em variáveis essenciais fora da faixa então estabelecida deve requerer requalificação. 4.17 Requisito WPS (GTAW) Antes do uso, o Empreiteiro deve preparar uma WPS(s) e qualificar cada WPS em conformidade com os requisitos da Cláusula 4. 4.18 Requisitos WPS (ESW/EGW) Antes do uso, o Empreiteiro deve preparar e qualificar cada WPS ESW ou EGW para ser usada de acordo com os requisitos da Cláusula 4. A WPS deve incluir os detalhes de junta, tipo e diâmetro de metal de
  • 153.
    AWS D1.1/D1.1M:2012 `4. QUALIFICAÇÃO 133 adição, amperagem, voltagem (tipo e polaridade), velocidade de deslocamento vertical, se não for uma função automática de comprimento de arco ou taxa de deposição, oscilação (velocidade transversal, comprimento e tempo de contato), tipo de proteção inclusive taxa de fluxo e ponto de orvalho do gás ou tipo de fluxo, tipo de sapata de modelagem, PWHT, se usado, e outras informações pertinentes. 4.18.1 Qualificação Anterior. WPSs que tenham sido anteriormente qualificadas podem ser usadas, contanto que haja documentação própria, e que a WPS seja aprovada pelo Engenheiro. 4.18.2 Requisitos de Teste para Tensão de Metal Depositado. Antes do uso, o Empreiteiro deve demonstrar pelo teste descrito na Cláusula 4 que cada combinação de proteção e metal de adição irá produzir metal de solda que tenha propriedades mecânicas especificadas na última edição de A5.25, Specification for Carbon and Low Alloy Steel Electrodes and Fluxes for Electroslag Welding, da AWS, ou na última edição de A5.26, Specification for Carbon and Low Alloy Steel Electrodes for Electrogas Welding, da AWS, conforme aplicável, quando soldada em conformidade com WPS . Parte C Qualificação de Desempenho 4.19 Geral Os testes de qualificação de desempenho requeridos por este código são testes especificamente projetados para determinar a habilidade de um soldador, operador de soldagem, ou soldador ponteador em produzir boas soldagens. Os testes de qualificação não são projetados para serem usados como guias para soldagem ou soldagem provisória durante a construção. Esta última deve ser realizada em conformidade com uma WPS. 4.19.1 Posições Qualificadas de Soldagem de Produção 4.19.1.1 Soldadores e Operadores de Soldagem. As posições qualificadas de soldagem de produção para soldadores e operadores de soldagem devem estar em conformidade com a Tabela 4.11. 4.19.1.2 Soldadores Ponteadores. Um soldador ponteador deve ser qualificado por uma placa de teste em cada posição em que a soldagem provisória deve ser realizada. 4.19.2 Espessuras e Diâmetros de Produção Qualificados 4.19.2.1 Soldadores ou Operadores de Soldagem. A faixa de espessuras e diâmetros de soldagem de produção qualificada para a qual um soldador ou operador de soldagem é qualificado deve estar em conformidade com a Tabela 4.11. 4.19.2.2 Soldadores Ponteadores. A qualificação de soldador ponteador deve qualificar para espessuras maiores que ou iguais a 1/8 in [3 mm], e todos os diâmetros tubulares. 4.19.3 Qualificação de Soldador e Operador de Soldagem Através de Qualificação WPS. Um soldador ou operador de soldagem também pode ser qualificado por soldar uma placa, cano ou tubulação de teste de qualificação WPS satisfatória, que atenda os requisitos de 4.9. O soldador ou operador de soldagem é assim qualificado em conformidade com 4.19.1 e 4.19.2. 4.20 Tipos de Testes de Qualificação Requeridos 4.20.1 Soldadores e Operadores de Soldagem. O tipo e número de testes de qualificação requeridos para soldadores e operadores de soldagem deve estar em conformidade com a Tabela 4.11. Detalhes sobre os requisitos individuais de NDT e de teste mecânico são encontrados nas seguintes subcláusulas: (1) Inspeção Visual (ver 4.9.1) (use requisitos WPS) (2) Flexão de face, raiz, e lateral (ver 4.9.3.1) (use requisitos WPS) (3) Análise macrográfica (ver 4.31.2) (4) R u p t u r a d e S o l d a d e Filete (ver 4.31.4) 4.20.1.1 Substituição de RT para Testes de Flexão Guiados. Exceto para juntas soldadas por GMAW-S, um exame radiográfico da placa de teste ou cano de teste de qualificação de um soldador ou operador de soldagem pode ser feito em lugar dos testes de flexão descritos em 4.20.1(2) (ver 4.31.3 para requisitos RT). Em lugar de teste mecânico ou RT das montagens de teste de qualificação, um operador de soldagem pode ser qualificado por RT das 15 in [380 mm] iniciais de uma solda em chanfro de produção. A faixa de espessura material qualificada deve ser aquela mostrada na Tabela 4.11. 4.20.1.2 Testes de Flexão Guiados. Espécimes de teste mecânicos devem ser preparados ao cortar a placa, cano ou tubulação de teste como mostrado nas Figuras 4.21, 4.30, 4.31, 4.32, 4.33, e 4.34 para qualificação de soldador ou Figura 4.22, 4.33, ou 4.36 para qualificação de operador de soldagem, o que for aplicável. Esses espécimes devem ser aproximadamente retangulares em seção transversal, e ser preparados para teste em conformidade com a Figura 4.12, 4.13, 4.14, ou 4.18, o que for aplicável. 4.20.2 Soldadores Ponteadores. O soldador ponteador deve fazer uma solda provisória de tamanho máximo de 1/4 in [6 mm] de comprimento de aproximadamente 2 in [50 mm] no espécime de ruptura de solda de filete como mostrado na Figura 4.39. 4.20.2.1 Extensão da Qualificação. Um soldador ponteador que passe o teste para ruptura de solda de filete deve ser qualificado para realizar solda provisória em todos os tipos de juntas (exceto soldas em chanfro CJP, soldadas a partir de um lado sem reforço; por exemplo, juntas de topo e conexões em T-,
  • 154.
    AWS D1.1/D1.1M:2012 `4. QUALIFICAÇÃO 134 Y-, e K-) para o processo e posição para os quais o soldador ponteador é qualificado. Soldas provisórias que se encaixem na exceção acima devem ser realizadas por soldadores completamente qualificados para o processo e posição em que a soldagem deve ser feita. 4.21 Tipos de Solda para Qualificação de Desempenho de Soldador e Operador de Soldagem Para o propósito de qualificação de soldador e operador de soldagem, os tipos de solda devem ser classificados como segue: (1) Soldas em Chanfro CJP para Conexões Não Tubulares (ver 4.24) (2) Soldas em Chanfro PJP para Conexões Não Tubulares (ver 4.25) (3) Soldas de Filete para Conexões Não Tubulares (ver 4.26) (4) Soldas em Chanfro CJP para Conexões Tubulares (ver 4.27) (5) Soldas em Chanfro PJP para Conexões Tubulares (ver 4.28) (6) Soldas de Filete para Conexões Tubulares (ver 4.29) (7) Soldas de Tampão (Plug e Slot) paraConexões Tubulares e Não Tubulares (ver 4.30) 4.22 Preparação de Formulários de Qualificação de Desempenho A equipe de soldagem deve seguir uma WPS aplicável ao teste de qualificação requerido. Todas as limitações de variável essencial de WPS de 4.8 devem aplicar-se, em acréscimo às variáveis essenciais de desempenho de 4.23. O Registro de Qualificação de Desempenho de Soldagem (WPQR) deve servir como verificação por escrito e deve listar todas as variáveis essenciais aplicáveis da Tabela 4.12. Sugestões de formulários são encontradas no Anexo N. 4.23 Variáveis Essenciais Alterações além da limitação de variáveis essenciais para soldadores, operadores de soldagem, ou soldadores ponteadores mostrados na Tabela 4.12 devem requerer requalificação. 4.24 Soldas em Chanfro CJP para Conexões Não Tubulares Ver Tabela 4.10 para os requisitos de posição para qualificação de soldador ou operador de soldagem em conexões não tubulares. Observe que a qualificação em juntas com reforço qualifica para juntas de produção de soldagem que são têm goivagem por trás e são soldadas a partir do segundo lado. 4.24.1 Placas de Qualificação de Soldador. Os seguintes números de figura aplicam-se aos requisitos de posição e espessura para soldadores. (1) Figura 4.21—Todas as Posições— Espessura Ilimitada (2) Figura 4.30—Posição Horizontal— Espessura Ilimitada (3) Figura 4.31—Todas as Posições— Espessura Limitada (4) Figura 4.32—Posição Horizontal—Espessura Limitada 4.24.2 Testes de Placa de Qualificação para Operador de Soldagem 4.24.2.1 Para Soldas que Não Sejam EGW, ESW, e Soldas de Tampão (Plug). A placa de teste de qualificação para um operador de soldagem que não use EGW ou ESW, ou soldagem de tampão deve estar em conformidade com a Figura 4.22. Isso deve qualificar um operador de soldagem para soldagem de filete e em chanfro em material de espessura ilimitada para o processo e posição testados. 4.24.2.2 Para ESW e EGW. A placa de teste de qualificação para um operador de soldagem ESW ou EGW deve consistir em soldar uma junta de espessura máxima de material a ser usado em construção, mas a espessura do material de solda de teste não precisa exceder 1-1/2 in [38 mm] (ver Figura 4.35). Se uma solda de teste de espessura de 1-1/2 in [38 mm] é feita, não há necessidade de fazer teste para uma espessura menor. O teste deve qualificar o operador de soldagem para soldas em chanfro e de filete em material de espessura ilimitada para esse processo e posição de teste. 4.25 Soldas em Chanfro PJP para Conexões Não Tubulares. Qualificação para soldas em chanfro CJP deve qualificar para todas as soldas em chanfro PJP. 4.26 Soldas de Filete para Conexões Não Tubulares. Qualificação de soldas em chanfro CJP deve qualificar para soldas de filete. No entanto, onde apenas qualificação de solda de filete é requerida, ver Tabela 4.11. 4.27 Soldas em Chanfro CJP para Conexões Tubulares. Testes de qualificação para soldador ou operador de soldagem devem usar os seguintes detalhes: (1) Juntas de topo em chanfro CJP com reforço ou goivagem por trás em cano. Use a Figura 4.24(B).
  • 155.
    AWS D1.1/D1.1M:2012 `4. QUALIFICAÇÃO 135 (2) Juntas de topo em chanfro CJP sem reforço ou goivagem por trás. Use a Figura 4.24(A). (3) Juntas de topo em chanfro CJP ou conexões em T-, Y-, e K- com reforço em tubulação de caixa. Use a Figura 4.24(B) em cano (qualquer diâmetro), placa ou tubulação de caixa. (4) Conexões em T-, Y-, e K- em Chanfro CJP soldadas a partir de um lado com reforço em cano. Use a Figura 4.24(B) em cano de diâmetro apropriado. (5) Conexões em T-, Y-, e K- em Chanfro CJP soldadas a partir de um lado sem reforço em cano. Use a Figura 4.27 para diâmetro nominal de cano de ≥6 in [150 mm] ou Figura 4.28 para cano nominal de ≤4 in [100 mm]. (6) Conexões em T-, Y-, e K- em Chanfro CJP soldadas a partir de um lado sem reforço ou goivagem por trás em tubulação de caixa. As opções são as seguintes: (a) Figura 4.27 em cano (qualquer diâmetro) ou tubulação de caixa mais Figura 4.29 em tubulação de caixa. (b) Figura 4.27 em tubulação de caixa com espécime de análise macrográfica removido dos locais mostrados na Figura 4.29. Ver Tabela 4.11 para as faixas de produção de diâmetro e espessura qualificados pelos diâmetros e espessuras da montagem de teste. 4.27.1 Outros Detalhes de Junta ou WPSs. Para detalhes de junta, WPSs, ou profundidade presumida de boas soldas que sejam mais difíceis que aquelas descritas aqui, um teste descrito em 13.4.2 deve ser realizado por cada soldador em acréscimo aos testes 6GR (ver Figura 4.28 ou 4.29). A posição de teste deve ser vertical. 4.28 Soldas em Chanfro PJP para Conexões Tubulares. Qualificação para soldas em chanfro CJP em conexões tubulares devem qualificar para todas as soldas em chanfro PJP. 4.29 Soldas de Filete para Conexões Tubulares. Ver Tabela 4.11 para requisitos de qualificação de solda de filete. 4.30 Soldas de Tampão (Plug e Slot) para Conexões Tubulares e Não Tubulares. Qualificação para soldas em chanfro CJP em conexões tubulares ou não tubulares devem qualificar para todas as soldas de tampão (plug e slot). Ver Tabela 4.10 apenas para qualificação de solda de tampão (plug e slot). A junta deve consistir de um buraco de diâmetro de 3/4 in [20 mm] em uma placa de espessura de 3/8 in [10 mm] com uma placa de reforço de espessura mínima de 3/8 in [10 mm] (ver Figura 4.38). 4.31 Métodos de Teste e Critérios de Aceitação para Qualificação de Soldador e Operador de Soldagem 4.31.1 Inspeção Visual. Ver 4.9.1 para critérios de aceitação 4.31.2 Ensaio Macrográfico. Os espécimes de teste devem ser preparados com um acabamento adequado para exame macrográfico. Uma solução adequada deve ser usada para textura, para dar uma definição clara da solda. 4.31.2.1 Ensaios Macrográficos de Solda de Filete e de Tampão. A face da análise macrográfica deve ser lisa para textura. (1) Os ensaios macrográficos de solda de tampão (plug) devem ser cortados das juntas de teste por: (a) Qualificação de Soldador—Figura4.38 (b) Qualificação de Operador de Soldagem— Figura4.38 (2) Os ensaios macrográficos de solda de filete devem ser cortados a partir das juntas de teste por: (a) Qualificação de Soldador—Figura4.37 (b) Qualificação de Operador de Soldagem— Figura4.37 4.31.2.2 Ensaio Macrográfico para Conexões em T-, Y-, e K-. A junta de ângulo de teste de análise macrográfica para conexões em T-, Y-, e K- em tubulações de caixa na Figura 4.29 deve ter quatro espécimes de análise macrográfica cortados a partir dos cantos da solda nos locais mostrados na Figura 4.29. Uma face de cada espécime de canto deve ser lisa para textura. Se o soldador for testado em um cupom 6GR (Figura 4.28) usando tubulação de caixa, os quarto espécimes de canto para teste de análise macrográfica podem ser cortados a partir dos cantos do cupom 6GR em u m a maneira similar à Figura 4.29. Uma face de cada espécime de canto deve ser lisa para textura. 4.31.2.3 Critérios de Aceitação do Ensaio Macrográfico. Para qualificação aceitável, o espécime de teste, quando inspecionado visualmente, deve estar em conformidade com os seguintes requisitos: (1) Soldas de filete devem ter fusão com a raiz da junta mas não necessariamente além. (2) O tamanho mínimo de solda deve atender o tamanho de solda de filete especificado.
  • 156.
    AWS D1.1/D1.1M:2012 `4. QUALIFICAÇÃO 136 (3) Soldas de f ilete e a junta de ângulo para ensaio macrográfico em conexões em T-, Y-, e K- em tubulações de caixa, Figura 4.29, devem ter: (a) Nenhuma trinca (b) Fusão completa entre camadas adjacentes de metais de solda e entre metal de solda e metal base (c) Perfis de solda em conformidade com detalhe pretendido, mas sem qualquer das variações proibidas em 5.24 (d) Nenhuma mordedura excedendo 1/32 in [1 mm] (e) Para porosidade de 1/32 in [1 mm] ou maior, porosidade acumulada que não exceda 1/4 in [6 mm] (f) Sem escória acumulada, da qual a soma das maiores dimensões não deve exceder 1/4 in [4 mm] (4) Soldas de Tampão ( Plug) devem ter: (a) Nenhuma trinca (b) Fusão completa com o reforço e com os lados do orifício (c) Nenhuma escória visível que exceda o comprimento total acumulado de 1/4 in [6 mm] 4.31.3 RT. Se RT é usado em lugar dos testes de flexão prescritos, o reforço de solda não precisa ser retificado ou aplainado de outra forma para inspeção, a menos que as irregularidades de sua superfície ou junção com o metal base causariam desconti-nuidades de solda sujeitas a objeções a serem obscurecidas na radiografia. Se o reforço for removido para RT, a raiz deve ser retificada por jateamento (ver 5.24.3.1) com o metal base. 4.31.3.1 Procedimento e Técnica de Teste RT. O procedimento e técnica RT devem estar em conformidade com os requisitos da Parte E, Cláusula 6. Para qualificação de soldador, exclua 1-1/4 in [32 mm] em cada extremidade da solda de avaliação na placa de teste; para qualificação de operador de soldagem exclua 3 in [75 mm] em cada extremidade do comprimento da placa de teste. Canos ou tubulações de teste soldados de diâmetro de 4 in [100 mm] ou maior devem ser examinados por um mínimo de metade do perímetro da solda selecionada para incluir uma amostra de todas as posições soldadas. (Por exemplo, um cano ou tubo de teste soldado na posição 5G, 6G, ou 6GR deve ser radiografado a partir da linha de centro do topo para a linha de centro do fundo em todos os lados.) Cano ou tubulação de teste soldados com diâmetro menor que 4 in [100 mm] devem requere RT de100%. 4.31.3.2 Critérios de Aceitação RT. Para qualificação aceitável, a solda, como revelado pela radiografia, deve estar em conformidade com os requisitos de 6.12.2, exceto que 6.12.2.2 não deve aplicar-se. 4.31.4 Teste de Ruptura de Solda de Filete. O comprimento todo da solda de filete deve ser examinado visualmente, e então um espécime de comprimento de 6 in [150 mm] (ver Figura 4.37) ou uma quarta parte de uma montagem da solda de filete de cano deve ser carregada de tal forma que a raiz da solda esteja em tensão. Pelo menos um início e interrupção de soldagem deve estar localizado dentro de espécime de teste. A carga deve ser aumentada ou repetida até que o espécime frature ou dobre-se completamente sobre si mesmo. 4.31.4.1 Critérios de Aceitação para Teste de Ruptura de Solda de Filete. Para passar o exame visual anterior ao teste de ruptura, a solda deve apresentar uma aparência razoavelmente uniforme e deve estar livre de sobreposição, trincas e mordedura que exceda os requisitos de 6.9. Não deve haver porosidade visível na superfície da solda. O espécime quebrado deve passar se: (1) O espécime dobra-se sobre si mesmo, ou (2) A solda de filete, se fraturada, tem uma superfície de fratura que mostra fusão completa com a raiz da junta sem inclusão ou porosidade maior que 3/32 in [2,5 mm] em sua maior dimensão, e (3) A soma das maiores dimensões de todas as inclusões e porosidade não deve exceder 3/8 in [10 mm] no espécime de 6 in [150 mm]. 4.31.5 Espécimes de Flexão de Raiz, Face e Lateral. Ver 4.9.3.3 para critérios de aceitação. 4.32 Método de Teste e Critérios de Aceitação para Qualificação de Soldador Ponteador Uma força deve ser aplicada ao espécime como mostrado na Figura 4.35 até que ocorra a ruptura. A força pode ser aplicada por quaisquer meios convenientes. A superfície da solda e da fratura deve ser examinada visualmente à procura de defeitos. 4.32.1 Critérios de Aceitação Visual. A solda provisória deve apresentar uma aparência razoavelmente uniforme e deve ser livre de sobreposição, trincas e mordedura excedendo 1/32 in [1 mm]. Não deve haver porosidade visível na superfície da solda provisória. 4.32.2 Critérios de Aceitação de Teste Destrutivo. A superfície fraturada da solda provisória deve mostrar fusão com a raiz, mas não necessariamente além, e não deve exibir fusão incompleta dos metais base, ou qualquer inclusão ou porosidade maior que 3/32 in [2,5 mm] em sua maior dimensão. 4.33 Reteste. Quando um soldador, operador de soldagem ou soldador ponteador falha em um teste de qualificação, ou se há razões específicas para questionar suas habilidades de soldagem, ou se o período de efetividade terminou, o seguinte deve aplicar-se: 4.33.1 Requisitos de Reteste de Soldador e Operador de Soldagem
  • 157.
    AWS D1.1/D1.1M:2012 `4. QUALIFICAÇÃO 137 4.33.1.1 Reteste Imediato. Um reteste imediato pode ser feito consistindo de duas soldas de cada tipo e posição em que o soldador ou operador de soldagem falhou. Todos os espécimes de reteste devem atender todos os requisitos especificados. 4.33.1.2 Reteste Após Treino ou Prática Adicional. Um reteste pode ser feito, contanto que haja evidência de que o soldador ou operador de soldagem tenha tido treino ou prática adicional. Um reteste completo dos tipos e posições em que houve falência ou em questão deve ser feito. 4.33.1.3 Reteste Após Término de Período de Efetividade de Qualificação. Quando o período de qualificação de um soldador ou operador de soldagem tenha terminado, um teste de requalificação deve ser requerido. Soldadores têm a opção de usar uma espessura de teste de 3/8 in [10 mm] para qualificar qualquer espessura de soldagem de produção maior ou igual a 1/8 in [3 mm]. 4.33.1.4 Exceção—Falência de um Reteste de Requalificação. Nenhum reteste imediato deve ser permitido após falência de um teste de requalificação. Um reteste deve ser permitido apenas após treino ou prática adicional por 4.33.1.2. 4.33.2 Requisitos de Reteste de Soldador Ponteador 4.33.2.1 Reteste sem Treino Adicional. Em caso de falha em passar nos requisitos de teste, o soldador ponteador pode fazer um reteste sem treino adicional. 4.33.2.2 Reteste Após Treino ou Prática Adicional. Um reteste pode ser feito, contanto que o soldador ponteador tenha tido treino ou prática adicional. Um reteste completo deve ser requerido. Parte D Requisitos de Teste CVN 4.34 Geral 4.34.1 Os requisitos de teste e procedimentos de teste CVN nessa seção devem aplicar-se apenas quando especificado nos documentos d e c o n t r a t o e m conformidade com 5.26.5(3)[d] e 4.2.1.3, e Tabela 3.1 desse código. Embora os requisitos dessa seção não abordem teste CVN de metais base, é presumido que os metais base sejam adequados para aplicações em que teste CVN da WPS é requerido. 4.34.2 Os espécimes de teste CVN devem ser usinados e testados em conformidade com E 23, Standard Methods for Notched Bar Impact Testing of Metallic Materials, da ASTM, para Espécime de Impacto Tipo A Charpy (viga simples), A 370, Standard Test Method and Definitions for Mechanical Testing of Steel Products, da ASTM ou B4.0, Standard Methods for Mechanical Testing of Welds, da AWS. 4.35 Locais de Teste 4.35.1 O local de teste para espécimes individuais de teste CVN, a menos que especificado de outra forma em documentos de contrato, deve ser como mostrado na Figura 4.40 e na Tabela 4.14. 4.35.2 O posicionamento do entalhe para todos os espécimes de teste CVN deve ser feito primeiro pela usinagem dos espécimes da solda de teste à profundidade apropriada como mostrado na Figura 4.40. Os espécimes deveriam ser feitos levemente mais compridos para permitir o exato posicionamento do entalhe. Em seguida, as barras deveriam ser atacadas com um agente de gravação moderado como nital 5%, para revelar a localização da zona de fusão da solda e HAZs. A linha de centro do entalhe deve então ser localizada no espécime, como mostrado na Figura 4.40. 4.36 Testes CVN 4.36.1 Há duas opções para o número de espécimes de teste CVN a serem tomadas em um único local de teste: Opção A-3 espécimes Opção B-5 espécimes 4.36.2 Os espécimes de teste CVN devem ser usinados da mesma montagem de teste soldada feita para determinar outras propriedades de junta de solda (ver Figura 4.7, 4.8, 4.10 ou 4.11). Quando o tamanho das montagens de teste soldadas não é suficiente para satisfazer todos os requisitos de espécime de teste mecânico, uma montagem de teste soldada adicional deve ser realizada. Os espécimes de teste CVN devem sofrer usinagem a partir da montagem de teste soldada na qual espécimes de teste de tração são usinados. 4.36.3 Quando teste CVN é um requisito, um PQR com testes CVN e uma WPS qualificada são requeridos. Ou um novo PQR deve ser preparado, ou se existe um PQR que satisfaz todos os requisitos exceto teste CVN, deve ser necessário apenas preparar uma ligação de solda de teste adicional com material suficiente para fornecer os espécimes de teste CVN requeridos. Uma placa de teste completa ou parcial (como observado acima) deve ser soldada usando uma WPS que esteja em conformidade com o “teste” original WPS se aplicável e com os limite das Tabelas 4.1, 4.2, e 4.5, mais aquelas variáveis essenciais suplementares aplicáveis apenas a teste CVN (Tabela 4.6). Um novo PQR, ou um revisado, deve ser preparado e uma nova ou revista WPS escrita para acomodar as variáveis de qualificação para teste CVN. 4.36.4 A linha de centro longitudinal dos espécimes deve ser transversal ao eixo da solda e o entalhe base deve ser perpendicular (normal) à superfície a menos que especificado de outra forma em documentos de contrato. 4.36.5 O espécime padrão de 10 × 10 mm deve ser usado quando a espessura do material de teste é de 7/16
  • 158.
    AWS D1.1/D1.1M:2012 `4. QUALIFICAÇÃO 138 in [11 mm] ou maior. Espécimes de tamanho inferior devem ser usados quando a espessura do material de teste é menor que 7/16 in [11 mm], ou quando a extração de espécimes de tamanho total não é possível devido à forma da ligação soldada. Quando espécimes de tamanho inferior são requeridos, eles devem ser feitos para uma das dimensões mostradas na Tabela 4.15. (Observação: os maiores espécimes possíveis devem ser usinados a partir de uma peça de teste de qualificação.) 4.36.6 A temperatura de teste CVN deve ser especificada nos documentos de contrato. 4.36.7 Quando espécimes de tamanho inferior são requeridos e a largura do espécime através do entalhe é menor que 80% da espessura do metal base, a temperatura de teste deve ser reduzida em conformidade com a Tabela 4.15, a menos que de outra forma especificado nos documentos de contrato. 4.37 Requisitos de Teste 4.37.1 Requisitos de teste para soldas entre metais base com limite de escoamento mínimo especificado de 50 ksi [345 MPa] ou menos não devem ser menores que os requisitos mínimos da Tabela 4.14, a menos que de outra forma especificado. Requisitos de teste para soldas entre metais base com um limite de escoamento mínimo especificado maior que 50 ksi [345 MPa] deve ser especificado nos documentos de contrato. Esses requisitos podem incluir, mas não estão limitados a, energia absorvida, percentagem de aparência de fratura dúctil, e valores de expansão lateral. 4.37.2 Os critérios de aceitação para cada teste devem ser especificados em especificações e desenhos de contrato, e devem consistir do seguinte: (1) Valor mínimo individual – valor do qual nenhum espécime pode estar abaixo, e (2) Valor médio mínimo – o valor que a média aritmética de três espécimes deve igualar ou exceder. A menos que especificado de outra forma em desenhos ou especificações de contrato, a aceitação de valores para os requisitos de teste CVN descritos em 4.37.1 para soldas entre metais base com um limite de escoamento mínimo especificado de 50 ksi [345 MPa] ou menos, como mostrado na Tabela 4.14. 4.37.3 Se a Opção B (ver 4.36.1) for escolhida, os espécimes com os valores mais altos e mais baixos devem ser descartados, deixando 3 espécimes para avaliação. Para os espécimes da Opção A e os 3 espécimes remanescentes da Opção B, 2 dos 3 valores para os espécimes devem igualar ou exceder o valor médio mínimo especificado. Um dos três pode ser mais baixo que o valor médio mínimo especificado, mas não mais baixo que o valor individual mínimo especificado, e média dos três não deve ser menor que o valor médio mínimo especificado. 4.38 Reteste 4.38.1 Quando os requisitos em 4.37.2 e 4.37.3 não são atendidos, um reteste pode ser realizado. Cada valor individual dos três espécimes remanescentes deve ser igual ou maior que o valor médio mínimo especificado. Espécimes de reteste devem ser removidos das ligações soldadas de teste originais. Se espécimes não puderem ser fornecidos a partir dessas ligações soldadas, uma nova ligação soldada de teste deve ser realizada e todos os testes mecânicos requeridos por esse código devem ser realizados. 4.39 Relatório 4.39.1 Todos os valores medidos de testes CVN requeridos por este código, documentos de contrato, ou especificações devem ser relatados no PQR.
  • 159.
    CJP- Penetração Completade Junta PJP- Penetração Parcial de Junta a Qualifica para um eixo de soldagem com uma linha essencialmente reta, inclusive soldagem ao longo de uma linha paralela ao eixo de um cano circular b Qualifica para soldas circunferenciais em canos com diâmetro exterior nominal igual ou maior que 24 in [600 mm] c Detalhes de junta de topo de produção sem reforço ou goivagem por trás requerem teste de qualificação do detalhe de junta mostrado na Figura 4 25(A) d Limitado a detalhes de junta pré-qualificados (ver 3 12 ou 3 13) e Para juntas de produção de conexões em T-, Y-, e K- CJP que estejam em conformidade com a Figura 3 8, 3 9, ou 3 10 e Tabela 3 6, use o detalhe da Figura 4 27 para teste Para outras juntas de produção, ver 4 13 4 1 f Para juntas de produção de conexões em T-, Y-, e K- CJP que estejam em conformidade com a Figura 3 6, e Tabela 3 6, use detalhe das Figuras 4 27 e 4 29 para teste, ou, como alternativa, teste a junta da Figura 4 27 e corte espécimes de análise macrográfica dos locais de canto mostrados na Figura 4 29 Para outras juntas de produção, ver 4 13 4 1 g Para juntas de produção de conexões em T-, Y-, e K- PJP que estejam em conformidade com a Figura 3 5, use detalhe da Figura 4 25(A) ou Figura 4 25(B) para teste h Para conexões de caixa correspondente com raios de canto menores que duas vezes a espessura do membro de corda, ver 3 12 4 1 i Soldas de filete em conexões de produção em T-, Y-, ou K- devem conformar-se à Figura 3 2 Qualificação WPS deve estar conforme a 4 12 Tabela 4.1 Qualificação WPS—Posições de Soldagem de Produção Qualificadas por Testes de Placa, Cano e Tubo de Caixa (ver 4.4) Teste de Qualificação Soldagem de Produção de Placa Qualificada Soldagem de Produção de Cano Qualificada Soldagem de Produção de Tubo de Caixa Qualificada Tipo de Solda Posições Chanfro CJP Chanfro PJP Filete Junta de Topo Conexões em T-, Y-, K- Filete Junta de Topo Conexões em T-, Y-, K- Filete CJP PJP CJP PJP CJP PJP CJP PJP p L A C A CJP Chanfro lG 2G 3G 4G F F, H V OH F F, H V OH F F, H V OH Fb (F, H)b Vb OHb Fb (F, H)b Vb OHb F F, H V OH F F, H V OH F F, H V OH F F, H V OH Filete lF 2F 3F 4F F F, H V OH F F, H V OH F F, H V OH Tampão Qualifica Soldagem de Tampão Apenas para as Posições Testadas T u B u L A R CJP Chanfro lG Rotacionado 2G 5G (2G + 5G) 6G 6GR F F, H F,V,OH Todos Todos Todos F F, H F,V,OH Todos Todos Todos F F, H F,V,OH Todos Todos Todos Fc ( F, H)c (F,V,OH)c Todosc Todosc Todosd F F, H F,V,OH Todos Todos Todos Todose Todose F F, H F,V,OH Todosg Todosg Todos F F, H F,V,OH Todos Todos Todos Fc ( F, H)c (F,V,OH)c Todosc Todosc Todosd F F, H F,V,OH Todos Todos Todos Todosf Todosf F F, H F,V,OH Todosg.h Todosg.h Todos F F, H F,V,OH Todos Todos Todos Filete lF Rotacionado 2F 2F Rotacionado 4F 5F F F,H F,H F,H,OH Todos F F,H F,H F,H,OH Todos F F,H F,H F,H,OH Todos 4. QUALIFICAÇÃO AWS D1.1/D1.1M:2010
  • 160.
    AWS D1.1/D1.1M:2012 4.QUALIFICAÇÃO 140 Tabela 4.2 Qualificação WPS—Soldas em Chanfro CJP: Número e Tipo de Espécimes de Teste e Faixa de Espessura e Diâmetro Qualificada (ver 4.5) (Dimensões em Polegadas) 1 Testes em Placa a,b Espessura (T) Norninal de Placa Testada, in Número de Espécimes Espessura c,d Nominal de Placa, Cano ou Tubo Qualificada, in Tensão de Seção Reduzida (ver Fig 4 14) Flexão de Raiz (ver Fig 4 12) Flexão de Face (ver Fig 4 12) Flexão Lateral (ver Fig 4 13) Mín Máx l/8 T 3/8 2 2 2 (Note i) 1/8 2T 3/8<T<l 2 - - 4 1/8 2T 1 e acima 2 - - 4 1/8 Ilimitado 2 Testes em Cano ou Tubulaçãoa,g Tamanho ou Diâmetro Nominal de Cano , in EspessuraN ominal de Parede, T, in Número de Espécimes Diâmetro Nominal de Cano ou Tamanho de Tubo Qualificados, in Espessura c,d Nominal de Parede de Placa, Cano ou Tubo Qualificada, in Tensão de Seção Reduzida (ver Fig 4 14) Flexão de Raiz (ver Fig 4 12) Flexão de Face (ver Fig 4 12) Flexão Lateral (ver Fig 4 13) Mín Máx Canos de Teste Job Size <24 l/8 T 3/8 2 2 2 (Note i) Diâmetro de teste e acima 1/8 2T 3/8 <T <314 2 - - 4 Diâmetro de teste e acima T/2 2T T3/4 2 - - 4 Diâmetro de teste e acima 3/8 Ilimitado 24 l/8 T 3/8 2 2 2 (Note i) Diâmetro de teste e acima 1/8 2T 3/8 <T <314 2 - - 4 24 e acima T/2 2T T3/4 2 - - 4 24 e acima 3/8 Ilimitado Canos de Teste Padrão 2 in Sch 80 ou 3 in Sch 40 2 2 2 - 3/4 até 4 1/8 3/4 6 in Sch 120 ou 8 in Sch 80 2 - - 4 4 e acima 3/16 Ilimitado 3 Testes em ESW e EGW a,h Espessura Nominal de Placa Testada Número de Espécimes Espessura Nominal de Placa Qualificada Tensão de Seção Reduzida (ver Fig 4 14) Tensão de Metal Depositado (ver Fig 4 18) Flexão Lateral (ver Fig 4 13) Testes CVN Mín Máx T 2 I 4 (Note f) O.ST l.IT a Todas as soldas de teste de placa, cano ou tubo devem ser inspecionadas visualmente (ver 4 9 1) e sujeitas a NDT (ver 4 9 2) Uma placa, cano ou tubo de teste deve ser requisitada para cada posição qualificada b Ver Figuras 4 10 e 4 11 para requisitos de teste de placa c Para soldas em chanfro quadrado que são qualificadas sem goivagem por trás, a espessura máxima qualificada deve ser limitada à espessura da placa de teste d Qualificação de solda em chanfro CJP em qualquer espessura ou diâmetro deve qualificar qualquer tamanho de solda de filete ou solda em chanfro PJP para qualquer espessura ou diâmetro (ver 4 11 3) e Qualificação com qualquer diâmetro de cano deve qualificar todas as larguras e profundidades de seção de caixa f Quando especificado, testes CVN devem estar em conformidade com a Cláusula 4, Parte D g Ver Tabela 4 1 para os detalhes em chanfro requeridos para qualificação de juntas de topo tubulares e em conexões em T-, Y-, K- h Ver Figura 4 9 para requisitos de placa i Para espessura de placa ou parede de 3/8 in, um teste de flexão lateral pode ser substituído por cada um dos testes de raiz e face requeridos
  • 161.
    AWS D1.1/D1.1M:2010 4.QUALIFICAÇÃO 141 Tabela 4.2 Qualificação WPS—Soldas em Chanfro CJP: Número e Tipo de Espécimes de Teste e Faixa de Espessura e Diâmetro Qualificados (ver 4.5) (Dimensões em Milímetros) 1 Testes em PlacaJ b Espessura (T) Norninal de Placa Testada, mm Número de Espécimes Espessurac,d Norninal de Placa, Cano ou Tubo Qualificada, mm Tensão de Seção Reduzida (ver Fig 4 14) Flexão de Raiz (ver Fig 4 12) Flexão de Face (ver Fig 4 12) Flexão Lateral (ver Fig 4 13) Mín Máx 3 ≤ T ≤ 10 2 2 2 (Note i) 3 2T 10 < T <25 2 - - 4 3 2T 25 e acima 2 - - 4 3 Ilimitado 2 Testes em Cano ou Tubulaçãoa,g Tamanho ou Diâmetro Nominal de Cano, mm Espessura Nominal de Parede, T mm Número de Espécimes Diâmetro Nominal de Cano ou Tamanho de Tubo Qualificados, rrnn Espessura c,d Norninal de Parede de Placa, Cano ou Tubo Qualificada, mm Tensão de Seção Reduzida (ver Fig 4 14) Flexão de Raiz (ver Fig 4 12) Flexão de Face (ver Fig 4 12) Flexão Lateral (ver Fig 4 13) Mín Máx Canos de Teste Job Size <600 3T lO 2 2 2 (Note i ) Diâmetro de teste e acima 3 2T 10<T<20 2 - - 4 Diâmetro de teste e acima T/2 2T T 20 2 - - 4 Diâmetro de teste e acima 10 Ilimitado 600 3T lO 2 2 2 (Note i ) Diâmetro de teste e acima 3 2T 10<T<20 2 - - 4 600 e acima T/2 2T T 20 2 - - 4 600 e acima 10 Ilimitado Canos de Teste Padrão 50 mm OD x 6 mm WT ou 75 mm OD x 6 mm WT 2 2 2 - 20 até 100 3 20 150 mm OD x 14 mm WT ou 200 mm OD x 12mm WT 2 - - 4 100 e acima 5 Ilimitado 3 Testes em ESW e EGW a,h Espessura Nominal de Placa Testada Número de Espécimes Espessura Nominal de Placa Qualificada Tensão de Seção Reduzida (ver Fig 4 14) Tensão de Metal Depositado (ver Fig 4 18) Flexão Lateral (ver Fig 4 13) Testes CVN Mín Máx T 2 I 4 (Note f ) 0 5T 1 1T a Todas as soldas de teste de placa, cano ou tubo devem ser inspecionadas visualmente (ver 4 9 1) e sujeitas a NDT (ver 4 9 2) Uma placa, cano ou tubo de teste deve ser requerida para cada posição qualificada b Ver Figuras 4 10 e 4 11 para requisitos de teste de placa c Para soldas em chanfro quadrado que são qualificadas sem goivagem por trás, a espessura máxima qualificada deve ser limitada à espessura da placa de teste d Qualificação de solda em chanfro CJP em qualquer espessura ou diâmetro deve qualificar qualquer tamanho de solda de filete ou em chanfro PJP para qualquer espessura ou diâmetro (ver 4 11 3) e Qualificação com qualquer diâmetro de cano deve qualificar todas as larguras e profundidades d seção de caixa f Quando especificado, testes CVN devem estar em conformidade com a Cláusula 4, Parte D g Ver Tabela 4 1 para os detalhes de chanfro requeridos para qualificação de juntas de topo tubulares e de conexões em T-, Y-, K- h Ver Figura 4 9 para requisitos de placa i Para placa ou espessura de parede de 10 mm, um teste de flexão lateral pode ser substituído por cada um dos testes de flexão de raiz e de face requeridos
  • 162.
    AWS D1.1/D1.1M:2010 4.QUALIFICAÇÃO 142 Tabela 4.3 Número e Tipo de Espécimes de Teste e Faixa de Espessura Qualificada - Qualificação WPS; Soldas em Chanfro PJP (ver 4.11) Profundidade de Chanfro de Teste, T in[mm] Número de Espécimes a, b Faixas de Qualificação c, d Análise Macrográfica para Tamanho de Solda (E) 4 11 2 4 11 3 4 11 4 Tensão de Seção Reduzida (ver Fig 4 14) Flexão de Raiz (ver Fig 4 12) Flexão de Face (ver Fig 4 12) Flexão Lateral (ver Fig 4 13) Profundida de do Chanfro Espessura Nominal de Placa, Cano ou Placa de Tubulação, in [mm] Mín Máx 1/8 ≤ T ≤ 3/8 [3 ≤ T ≤ 10] 3 2 2 2 - T 1/8 [3] 2T 3/8 < T ≤ 1 [10 < T ≤ 25] 3 2 - - 4 T 1/8 [3] Ilimitado REQUISITOS BÁSICOS a Uma placa, cano ou tubulação de teste por posição deve ser requerida (ver Figura 4 10 ou 4.11 para placa de teste). Use o detalhe de chanfro PJP de produção para qualificação. Todas as placas, canos ou tubulações devem ser visualmente inspecionados (ver 4.9.1). b Se um bisel PJP ou solda em chanfro em J- será usado para juntas em T-, ou bisel duplo ou solda em chanfro em duplo J será usado para juntas de ângulo, a junta de topo deve ter uma placa restritiva temporária no plano da face quadrada para simular uma configuração de junta em T-. c Requisitos de qualificação de diâmetro de cano Verthe da Tabela 4.2. d Qualquer qualificação PJP deve também qualificar qualquer tamanho de solda de filete em qualquer espessura. Tabela 4.4 Número e Tipo de Espécimes de Teste e Faixa de Espessura Qualificada - Qualificação WPS; Soldas de Filete (ver 4.12.1) Espécie de Teste Tamanho de Filete Número de Soldas por WPS Espécime de Teste Requerido b Tamanhos Qualificados Análise Macrográfica 4 11 1 4 8 4 Tensão de Metal Consolidado (ver Figura 4 18) Flexão Lateral (ver Figura 4 13) Espessura de Placa/Cano Tamanho do Filete Teste T- de Placa (Figura 4 19) Passe único, tamanho máximo a ser usado em construção 1 em cada posição a ser usada 3 faces - - Ilimitado Passe único máximo testado e menor Passe múltiplo, tamanho mínimo a ser usado em construção 1 em cada posição a ser usada 3 faces - - Ilimitado Passe múltiplo mínimo testado e maior Teste T- de Cano c (Figura 4 20) Passe único, tamanho máximo a ser usado em construção 1 em cada posição a ser usada (ver Tabela 4 1) 3 faces (exceto para 4F & 5F, 4 faces requeridas) - - Ilimitado Passe único máximo testado e menor Passe múltiplo, tamanho mínimo a ser usado em construção 1 em cada posição a ser usada (ver Tabela 4 1) 3 faces (exceto para 4F & 5F, 4 faces requeridas) Ilimitado Passe múltiplo mínimo testado e maior Teste de chanfro d (Figura 4 23) - 1 na posição 1G - 1 2 Qualifica consumíveis de soldagem a serem usados no teste T- acima a A espessura mínima qualificada deve ser 1/8 in [3 mm]. b Todos os canos e placas de teste soldados devem ser visualmente inspecionados por 4.9.1. c Ver Tabela 4.2(2) para qualificação de diâmetro de cano. d Quando os consumíveis de soldagem usados não estão em conformidade com as provisões pré-qualificadas da Cláusula 3, e uma WPS usando os consumíveis de soldagem propostos não foi estabelecida pelo Empreiteiro em conformidade com 4.10 ou 4.11.1, uma placa de teste de solda em chanfro CJP groove deve ser soldada em conformidade com 4.9.
  • 163.
    AWS D1.1/D1.1M:2010 4.QUALIFICAÇÃO 143 Tabela 4.5 Alterações em Variável Essencial de PQR que Requerem Requalificação WPS para SMAW, SAW, GMAW, FCAW, e GTAW (ver 4.8.1) Alterações de Variável Essencial no PQR que Requerem Requalificação Processo SMAW SAW GMAW FCAW GTAW Metal de Adição 1) Acréscimo na resistência de classificação do metal de adição X X X 2) Modificação de eletrodo SAW de baixo hidrogênio para eletrodo SAW que não é de baixo hidrogênio X 3) Alteração de uma classificação de eletrodo ou eletrodo-fluxo para outra classificação de eletrodo ou eletrodo-fluxo• X X X 4) Alteração para uma classificação de eletrodo ou eletrodo-fluxo não abordada em: AWS A5 1 ou A5 5 da AWS A5 17 ou A5 23 da AWS A5 18 ou A5 28 da AWS A5 20 ou A5 29 da AWS A5 18 ou A5 28 da AWS 5) Adição ou exclusão de metal de adição X 6) Modificação de alimentação de arame fria para alimentação de arame quente ou vice-versa X 7) Acréscimo ou exclusão de metal de adição ou arame granular ou em pó suplementar X 8) Acréscimo na quantidade de metal de adição ou arame em pó ou granular suplementar X 9) Se o conteúdo de liga do metal de solda é largamente dependente de metal de adição em pó suplementar, qualquer modificação de WPS que resulte em um depósito de solda com os elementos de liga importantes que não atendem aos requisitos de composição química da WPS X 10) Modificação no diâmetro nominal do metal de adição por: Acréscimo de > 1/32 in [0,8 mm] Qualquer acréscimo b Qualquer acréscimo ou decréscimo Qualquer acréscimo Acréscimo ou decréscimo de > 1116 in [1,6mrn] 11) Modificação no número de eletrodos X X X X 12) Uma alteração na amperagem para cada diâmetro usado por: Para um valor não recomendado pelo fabricante Acréscimo ou decréscimo de > 10% Acréscimo ou decréscimo de > 10% Acréscimo ou decréscimo de > 10% Acréscimo ou decréscimo de > 25% 13) Uma modificação no tipo de corrente (ac ou dc) ou polaridade (eletrodo positivo ou negativo para a corrente) X X X X X 14) Uma modificação no modo de transferência X 15) Uma modificação de saída CV para CC X X 16) Uma modificação na voltagem para cada diâmetro usado por: Acréscimo ou decréscimo de > 7% Acréscimo ou decréscimo de > 7% Acréscimo ou decréscimo de > 7% 17) Um acréscimo ou decréscimo na velocidade de alimentação de arame para cada diâmetro de eletrodo (se não controlado por amperagem) por: > 10% >10% >10%
  • 164.
    AWS D1.1/D1.1M:2010 4.QUALIFICAÇÃO 144 Tabela 4.5 (Continuação) Alterações em Variável Essencial de PQR que Requerem Requalificação WPS para SMAW, SAW, GMAW, FCAW, e GTAW (ver 4.8.1) Alterações de Variável Essencial no PQR que Requerem Requalificação Processo SMAW SAW GMAW FCAW GTAW Parâmetros de Processo 18) Uma alteração na velocidade de deslocamento por: Acréscimo ou decréscimo de > 15% Acréscimo ou decréscimo de > 25% Acréscimo ou decréscimo de > 25% Acréscimo ou decréscimo de > 50% 19) Uma alteração no gás de proteção de um único gás para outro gás único ou mistura de gases, ou composição percentual nominal especificada de mistura de gases ou para nenhum gás X X X 20) Uma modificação na taxa total de fluxo de gás por: Acréscimo > 50% Decréscimo > 20% Acréscimo > 50% Decréscimo > 20% Acréscimo > 50% Decréscimo > 20% 21) Uma modificação no gás de proteção não abordada em: A5 18 ou A5 28 da AWS A5 20 ou A5 29 da AWS Parâmetros SAW 22) Uma alteração de > 10%, ou 1/8 in [3 mm], o que for maior, no espaçamento longitudinal dos arcos X 23) Uma alteração de > 10%, ou 1/8 in [3 mm], ou que for maior, no espaçamento lateral dos arcos X 24) Um acréscimo ou decréscimo de mais de 10° na orientação angular de qualquer eletrodo paralelo X 25) Para SAW mecanizada ou automática; um acréscimo ou decréscimo de mais de 3° no ângulo do eletrodo X 26) Para SAW mecanizada ou automática; um acréscimo ou decréscimo de mais de 5° normal à direção de deslocamento X Geral 27) Uma modificação na posição não qualificada pela Tabela 4 1 X X X X X 28) Uma modificação em diâmetro, ou espessura, ou ambos, não qualificada pela Tabela 4 2 X X X X X 29) Uma alteração no metal base ou combinação de metais base não listados no PQR ou qualificados pela Tabela 4 8 X X X X X 30) Soldagem Vertical: Para qualquer passe de aclive para declive ou vice-versa X X X X
  • 165.
    AWS D1.1/D1.1M:2010 4.QUALIFICAÇÃO 145 Tabela 4.5 (Continuação) Alterações em Variável Essencial de PQR que Requerem Requalificação WPS para SMAW, SAW, GMAW, FCAW, e GTAW (ver 4.8.1) Alterações de Variável Essencial no PQR que Requerem Requalificação Processo SMAW SAW GMAW FCAW GTAW Geral 27) Uma modificação na posição não qualificada pela Tabela 4 1 X X X X X 28) Uma modificação em diâmetro, ou espessura, ou ambos, não qualificada pela Tabela 4 2 X X X X X 29) Uma alteração no metal base ou combinação de metais base não listados no PQR ou qualificados pela Tabela 4 8 X X X X X 30) Soldagem Vertical: Para qualquer passe de aclive para declive ou vice-versa X X X X 31) Uma modificação no tipo de chanfro (por exemplo, -V único para-V duplo), exceto qualificação de qualquer solda em chanfro CJP que qualifica para qualquer detalhe de chanfro em conformidade com os requisitos de 3 12 ou 3 13 X X X X X 32) Uma modificação no tipo de chanfro para um chanfro quadrado e vice-versa X X X X X 33) Uma alteração que exceda as tolerâncias de 3 12, 3 13 3 13 2 5 22 4 1 ou 5 22 4 2 envolvendo: a) Um decréscimo no ângulo de chanfro b) Um decréscimo na abertura de raiz c) Um acréscimo na face da raiz X X X X X 34) A omissão, mas não inclusão, de reforço ou goivagem por trás X X X X X 35) Decréscimo de temperatura d de pré- aquecimento por: >25°F [15o C] >25°F [15o C] > 25°F [15o C] > 25°F [15oC] > 100ºF [55°C] 36) Decréscimo de temperatura d de interpasse por: >25°F [15o C] >25°F [15o C] > 25°F [15o C] > 25°F [15o C] > 100ºF [55°C] 37) Adição ou exclusão de PWHT X X X X X a A resistência do metal de adição pode sofrer decréscimo sem requalificação WPS b Para WPSs usando fluxo de liga, qualquer acréscimo ou decréscimo no diâmetro do eletrodo deve requerer requalificação WPS c Faixas de velocidade de deslocamento para todos os lados de soldas de filete podem ser determinadas pelos testes de qualificação da maior solda de filete de passe único ou menor solda de filete de passe múltiplo d A temperatura de pré-aquecimento ou interpasse de soldagem de produção pode ser menor que a temperatura de pré-aquecimento ou interpasse de PQR contanto que as provisões de 5 6 sejam atendidas, e a temperatura do metal base não deve ser menor que a temperatura da WPS ao tempo da soldagem subsequente e Eletrodos da mesma classificação AWS A5M (Unidades SI) podem ser usados em lugar da classificação de eletrodo da AWS A5 (Unidades Convencionais dos EUA) Observação: Um “x” indica aplicabilidade para o processo; um bloco sombreado indica não aplicabilidade
  • 166.
    AWS D1.1/D1.1M:2010 4.QUALIFICAÇÃO 146 Tabela 4.6 Alterações Suplementares de Variável Essencial de PQR para Aplicações de Teste CVN que Requerem Requalificação WPS para SMAW, SAW, GMAW, FCAW, e GTAW Variável SMAW SAW GMAW GMAW GTAW Metal Base 1) Uma mudança no Número de Grupo X X X X X 2) A espessura mínima qualificada é T ou 5/8 in [16 mm], o que for menor, exceto se T for menor que 1/4 in [6 mm], então a espessura mínima qualificada é 1/8 in [3 mm] X X X X X Metal de Adição 2) Uma modificação na Classificação AS X da AWS, ou na classificação de um metal de solda ou metal de adição não abordada por especificações AS X X X X X X 4) Uma alteração em classificação de Fluxo/Arame, ou uma mudança no nome de marca do eletrodo ou fluxo quando não classificada por uma especificação AWS, ou para escória prensada X 5) Uma alteração no fabricante, ou no nome da marca do fabricante ou no tipo de eletrodo X Posição 6) Uma mudança na posição para vertical acima Um teste 3G vertical acima qualifica para todas as posições e vertical abaixo X X X X Temperatura de Pré-aquecimento/lnterpasse 7) Um acréscimo de mais de 100°F [56°C] na temperatura máxima de pré-aquecimento ou interpasse qualificada X X X X X Tratamento Térmico Pós-Solda 8) Uma alteração na temperatura PWHT e/ou faixas de tempo O teste PQR deve estar sujeito a temperatura(s) por 80% do tempo agregado O tempo total PWHT a temperatura(s) precisa ser aplicado em um ciclo de aquecimento X X X X X Características Elétricas 9) Um acréscimo no aporte de calor ou volume de metal de solda depositado por unidade de comprimento de solda acima do qualificado, exceto quando um tratamento térmico de austenitização de refino de grão é aplicado após a soldagem O acréscimo pode ser medido por qualquer dos seguintes: a) ( ) ( ) b) Volume de Metal de Solda - Um aumento no tamanho do passe, ou uma diminuição no comprimento do passe de solda por unidade de comprimento do eletrodo X X X X X Outras Variáveis 10) Na posição vertical, uma alteração de cinta para malha X X X X X 11) Uma modificação de passe múltiplo por lado para passe único por lado X X X X X 12) Uma alteração excedendo ±20% nas variáveis de oscilação para soldagem mecanizada ou automática X X X X
  • 167.
    AWS D1.1/D1.1M:2010 4.QUALIFICAÇÃO 147 Tabela 4.7 Alterações de Variável Essencial de PQR que Requerem Requalificação de WPS para ESW ou EGW (ver 4.8.2) Alterações de Variável Essencial no PQR que Requerem Requalificação Requalificação por Teste WPS Requalificação por RT ou UTa Metal de Adição 1) Uma alteração "significante" no metal de adição ou na composição do metal guia consumível X Sapatas de Moldagem (fixas ou móveis) 2) Uma modificação de metálico para não metálico ou vice-versa X 3) Uma modificação de fusão para não fusão ou vice-versa X 4) Uma redução em qualquer dimensão ou área de seção transversal de uma sapata sólida de não fusão > 25% X 5) Uma alteração no projeto de sólido de não fusão para resfriado por água ou vice-versa X Oscilação de Metal de Adição 6) Uma alteração na oscilação de velocidade transversal > 10 ipm (4 mm/s) X 7) Uma alteração na oscilação transversal do tempo de contato > 2 segundos (exceto conforme necessário para compensar as variações de abertura de junta) X 8) Uma modificação na oscilação de comprimento transversal que afeta em mais que 1/8 in [3 mm], a proximidade do metal de adição às sapatas de moldagem X Suplementos de Metal de Adição 9) Uma alteração na área de seção transversal principal do metal guia consumível > 30% X 10) Uma modificação no sistema de fluxo, isto é , eletrodo magnético , tubular, externo, etc X 11) Uma modificação na composição de fluxo inclusive revestimento guia consumível X 12) Uma alteração na sobrecarga do fluxo > 30% X Diâmetro do Eletrodo/ Metal de Adição 13) Acréscimo ou decréscimo no diâmetro do eletrodo > 1/32 in [1 mm] X 14) Uma alteração no número de eletrodos usados X Amperagem do Eletrodo 15) Um acréscimo ou decréscimo na amperagem > 20% X 16) Uma modificação no tipo de corrente (acorde) ou polaridade X Voltagem Arco Eletrodo 17) Um acréscimo ou decréscimo na voltagem > 10% X Características do Processo 18) Uma modificação para uma combinação com qualquer outro processo de soldagem X 19) uma alteração de passe único para passe múltiplo e vice versa X (Continua)
  • 168.
    AWS D1.1/D1.1M:2010 4.QUALIFICAÇÃO 148 Tabela 4.7 (Continuação) Alterações de Variável Essencial de PQR que Requerem Requalificação de WPS para ESW ou EGW (ver 4.8.2) Alterações de Variável Essencial no PQR que Requerem Requalificação Requalificação por Teste WPS Requalificação por RT ou UTa 20) Uma modificação de corrente constante para voltagem constante e vice versa X Velocidade de Alimentação do Arame 21) Um acréscimo ou decréscimo na velocidade de alimentação do arame > 40% X Velocidade de Deslocamento 22) Um acréscimo ou decréscimo na velocidade de deslocamento (se não uma função automática de comprimento de arco ou taxa de deposição)> 20% (exceto conforme necessário para compensar variação na abertura da junta) X 23) Uma modificação na composição do gás de proteção de qualquer constituinte > 5% do fluxo total X 24) Um acréscimo ou decréscimo na taxa total de fluxo de proteção> 25% X Posição de Soldagem 25) Uma alteração na posição vertical de > 10° X Tipo de Chanfro 26) Um acréscimo na área de seção transversal (para chanfros não quadrados) X 27) Um decréscimo na área de seção transversal (para chanfros não quadrados) X 28) Uma alteração na espessura de junta, T, do PQR, fora dos limites de 0 5T-l lT X 29) Um acréscimo ou decréscimo de > 1/4 ín [6 mm] na abertura de raiz do chanfro quadrado X Tratamento Térmico Pós-Solda 30) Uma alteração em PWHT X a O teste deve ser realizado em conformidade com a Cláusula 6, Partes E ou F, conforme aplicável Note: Um “x” indica aplicabilidade para o método de requalificação; um bloco sombreado indica não aplicabilidade Tabela 4.8 Tabela 3.1, Tabela 4.9, e Aços Não Listados Qualificados por PQR (ver 4.8.3) Metal Base PQR Grupo de Combinações de Grupo de Metal Base WPS Permitido por PQR Qualquer Aço Grupo I para Qualquer Aço Grupo I Qualquer Aço Grupo I para Qualquer Aço Grupo I Qualquer Aço Grupo II para Qualquer Aço Grupo II Qualquer Aço Grupo I para Qualquer Aço Grupo I Qualquer Aço Grupo II para Qualquer Aço Grupo I Qualquer Aço Grupo Ii para Qualquer Aço Grupo II Qualquer Aço Específico do Grupo III ou Tabela 4 9 para Qualquer Aço do Grupo I O Aço Específico do Grupo III ou Tabela 4 9 do PQR Testado para Qualquer Aço de Grupo I Qualquer Aço Específico do Grupo III ou Tabela 4 9 para Qualquer Aço do Grupo II O Aço Específico do Grupo III ou Tabela 4 9 do PQR Testado para Qualquer Aço de Grupo I ou Grupo II Qualquer Aço do Grupo III para o Mesmo ou Qualquer Outro Aço do Grupo III ou Qualquer Aço do Grupo IV para o Mesmo ou Qualquer Outro Aço do Grupo IV ou Qualquer Aço da Tabela 4 9 para o Mesmo ou Qualquer Outro Aço da Tabela 4 9 Aços devem ser da mesma especificação material, grau/tipo e limite de escoamento mínimo como os Aços listados no PQR Qualquer Combinação de Aços do Grupo III, IV, e da Tabela 4 9 Apenas a Combinação Específica de Aços listada no PQR Qualquer Aço Não Listado para Qualquer Aço Não Listado ou Qualquer Aço Listado na Tabela 3 1 ou Tabela 4 9 Apenas a Combinação Específica de Aços listada no PQR Notas: 1 Grupos I a IV são encontrados na Tabela 3 1 2 Quando permitido pela especificação do aço, o limite de escoamento pode ser reduzido com espessura de metal aumentada
  • 169.
    Tabela 4.9 Base eMetais de Adição Aprovados pelo Código que Requerem Qualificação pela Cláusula 4 Base Metal Metal de Adição de Resistência Correspondente Espessura do Metal Base, T Temperatura Mínima de Pré- aquecimento e Interpasse Especificação Limite de escoamento/Escoamento Mínimo Faixa de Tensão Processo Especificação de Eletrodo da AWS Classificação de Eletrodo ksi MPa ksi MPa in mm ºF ºC ASTM A 871 Graus 60, 65 60 65 415 450 75 min 80 min 520 min 550 min SMAW SAW GMAW FCAW A5 5 A5 23 A5 28 A5 29 E8015-X, E8016 X, E8018 X F8XX-EXXX-XX, F8XX-ECXXX-XX ER80S-XXX, E80C-XXX E8XTX X, E8XTX-XC, E8XTX-XM Até ¾ Acima de ¾ até 1-1/2 Acima de 1-1/2 até 2-1/2 Acima de 2-1/2 Até 20 Acima de 20 até 38 Acima de 38 até 65 Acima de 65 50 125 175 225 10 50 80 110 ASTM A 514 (Acima de 2-1/2 in [65 mm]) ASTM A 709 Graus 100, 100W (Acima de 2-1/2 in to 4 in [65 to 100 mm]) ASTM A 710 Grau A. Oass 1 3/4 in [20 mm] ASTM A 710 Grau A. Oass 3 2 in [50 mm] 90 90 80-85 75-80 620 620 550-585 515-550 100-130 100-130 90 min 85 min 690-895 690-895 620 min 585 min SMAW SAW GMAW FCAW A5 5 A5 23 A5 28 A5 29 E10015-X, E10016 X, E10018 X, E10018M F10XX-EXXX-XX, F10XX ECXXX XX ER100S-XXX, E100C-XXX E10XTX-XC, E10XTX-XM ASTM A 514 (2 1/2 in [65 mm] e abaixo) ASTM A 517 ASTM A 709 Graus 100, 100W (2 1/2in [65 mm] e abaixo) 100 90-100 100 690 620-690 690 110-130 105-135 110-130 760-895 725-930 760-895 SMAW SAW GMAW FCAW A5 5 A5 23 A5 28 A5 29 E11015-X, E11016 X, E11018 X, E11018M F11XX-EXXX-XX, F11XX-ECXXX-XX ER110S-XXX, E110C-XXX E11XTX-XC, E11XTX-XM (Continua) 4. QUALIFICAÇÃO AWS D1.1/D1.1M:2010
  • 170.
    Tabela 4.9 (Continuação) MetaisBase e Metais de Adição Aprovados pelo Código que Requerem Qualificação pela Cláusula 4 Base Metal Metal de Adição de Resistência Correspondente Espessura de Metal Base, T Temperatura Mínima de Pré-aquecimento e Interpasse Especificação Limite de escoamento/Escoamento Mínimo Faixa de Tensão Processo Especificação de Eletrodo AWS Classificação de Eletrodo ksi MPa ksi MPa in mm ºF ºC ASTM A 1043/A 1043M Graus 36, 50 36–52 50–65 250–360 345–450 58 min 65 min 58 min 65 min SMAW SAW GMAW FCAW A5 10 A5 50 A5 17 A5 23 A5 18 A5 28 A5 20 A5 29 E7015, E7016, E7018, E7028 E7015-X, E7016-X, E7018-X F7XX-EXXX, F7XX-ECXXX F7XX-EXXX-XX, F7XX-ECXXX-XX ER70S-X, E70C-XC, E70C-XM (Eletrodos com o sufixo -GS devem ser excluídos) ER70S-XXX, E70C-XXX E7XT-X, E7XT-XC, E7XT-XM (Eletrodos com os sufixos -2C, -2M, -3, -10, -13, -14, e -GS devem ser excluídos, e eletrodos com o sufixo -11 devem ser excluídos para espessuras maiores que 1/2 in [12 mm]) E7XTX-X, E7XTX-XC, E7XTX-XM Até ¾ Acima de ¾ até 1-1/2 Acima de 1-1/2 até 2-1/2 Acima de 2-1/2 Até 20 Acima de 20 até 38 Acima de 38 até 65 Acima de 65 50 125 175 225 10 50 80 110 Notas: 1 Quando soldas devem sofrer alívio de tensão, o metal de solda depositado não deve exceder 0,05% de vanádio (ver 5 8) 2 Quando requerido por contrato ou especificações de trabalho, metal de solda depositado deve ter um mínimo de energia CVN de 20 pés libras [27,1 J] a 0°F [20°C] como determinado ao usar o teste CVN em conformidade com a Cláusula 4, Parte D 3 Para A 514, A 517, e A 709 ASTM , Graus 100 e 100W, a temperatura máxima de pré-aquecimento e interpasse não deve exceder 400°F [200°C] para espessuras até 1-1/2 in [38 mm], inclusive, e 450°F [230°C] para espessuras maiores 4 As propriedades de metal de adição foram movidas para o informativo Anexo V 5 AWS A5M (Unidades SI) eletrodos de mesma classificação podem ser usados em lugar da classificação de eletrodo AWS A5 (Unidades Convencionais dos EUA) AWS D1.1/D1.1M:2010 4. QUALIFICAÇÃO
  • 171.
    Tabela 4.10 Qualificação deSoldador e Operador de Soldagem—Posições de Soldagem de Produção Qualificadas por Testes de Placa, Cano e Tubo de Caixa (ver 4.19.1)j Teste de Qualificação Soldagem de Produção de Placa Qualificada Soldagem de Produção de Cano Qualificada Soldagem de Produção de Tubo de Caixa Qualificada Tipo de Teste Posições' Chanfro CJP Chanfro PJP Filete Junta de Topo Conexões em T, Y-, K- Filete Junta de Topo Conexões em T-,Y-, K- Filete CJP PJP CJP PJP CJP PJP CJP PJP p L A T E Chanfrob lG 2G 3G 4G 3G+4G F F, H F,H,V F, OH Todos F F,H F,H,V F,OH Todos (F, H)h (F, H)h (F, H, V)h (F, H,OH)h Todos h Fc (F, H)c (F, H, V)c (F, OH)c Todos c Fc (F,H)c (F,H,V)c (F, H)c Todos c F c,e (F, H)c,e (F,H, V)c,e (F,OH) c,e Todos c,e (F, H)h (F, H)h (F,H, V)h (F,H,OH)h Todos h Fd (F, H)d (F, H, V)d (F, OH)d Todos d F F,H F,H,V F,OH Todos Fe (F, H)e (F,H, V)e (F, OH)e Todos e (F, H)h (F, H)h (F, H, V)h (F, H, OH)h Todos h Filete lF 2F 3F 4F 3F+4F Fh (F, H)h (F, H, V) (F, H,OH)h Todos h Fh (F, H)h (F, H, V)h (F,H, OH)h Todos h Fh (F, H)h (F, H, V)h (F, H, OH)h Todos h Tampão Qualifica Soldagem de Tampão (Plug e Slot) Apenas para as Posições Testadas T U B U L A R Chanfro (Cano ou Caixa) lG Rotacionado' 2G' 5G' 6G' (2G+ 5G)i F F,H F,V,OH Todos Todos F F,H F,V,OH Todos Todos (F, H)h (F, H)h (F,V,OH)h Todos h Todos Ff (F, H)f (F, V,OH)f Todos f Todos f Ff (F, H)f F,V,OH)f Todos f Todos f F e,f (F, H)e f (F,V,OH)e,f Todos e,f Todos e,f (F, H)h (F, H)h (F,V,OH)h Todos h Todos F F,H F,V,OH Todos Todos F F,H F,V,OH Todos Todos F e (F, H)e (F,V,OH)e Todos e Todos e (F, H)h (F, H)h (F,V,OH)h Todos h Todos 6GR (Fig 4 27) Todos Todos Todos h Todos d,f Todos i Todos e,f Todos ,e,f Todos h Todos d Todos Todos e Todos h 6GR (Fig 4 27 &4 29) Todos Todos Todos h Todos d,f Todos f Todos e,f Todos e,f Todos h Todos d Todos Todos e,g Todos c Todos h Filete de Cano lF Rotacionado 2F 2F Rotacionado 4F 5F Fh (F, H)h (F, H)h (F, H,OH)h Todos h Fh (F, H)h (F, H)h (F, H, OH)h Todos h Fh (F, H)h (F, H)h (F, H, OH)h Todos h CJP – Penetração Completa de Junta; PJP- Penetração Parcial de Junta a Ver Figuras 4.3, 4.4, 4.5, e 4.6. b A qualificação de solda em chanfro deve também qualificar soldas de tampão para as posições de teste indicadas. c Apenas qualificado para cano igual ou maior que 24 in [600 mm] em diâmetro com reforço, goivagem por trás ou ambos. d Não qualificado para juntas soldadas a partir de um lado sem reforço, ou soldadas a partir de dois lados sem goivagem por trás. e Não qualificado para soldas que têm ângulos de chanfro menores que 30° (ver 4.12.4.2). f Qualificação usando tubulação de caixa (Figura 4.27) também qualifica canos de soldagem com mais de 24 in [600 mm] de diâmetro. g Cano ou tubulação de caixa é requerido para a qualificação 6GR (Figura 4.27). Se tubulação de caixa é usado pela Figura 4.27, o ensaio macrográfico pode ser realizado nos cantos do espécime de teste (similar à Figura 4.29). h Ver 4.25 e 4.28 para restrições de ângulo diedro para juntas de placa e conexões tubulares em T-, Y-, K-. I Qualificação para juntas de produção de soldagem sem reforço ou goivagem por trás devem requerer o uso do detalhe de junta da Figura 4.24(A). Para juntas de produção de soldagem com reforço ou goivagem por trás, a Figura 4.24(A) ou a Figura 4.24(B) podem ser usadas para qualificação. J A qualificação de operadores de soldagem para soldagem por eletroescória (ESW) ou soldagem eletrogás (EGW) deve apenas aplicar-se à posição testada. 4. QUALIFICAÇÃO AWS D1.1/D1.1M:2010
  • 172.
    AWS D1.1/D1.1M:2010 4.QUALIFICAÇÃO 152 Tabela 4.11 Qualificação de Soldador e Operador de Soldagem—Número e Tipo de Espécimes e Faixa de Espessura e Diâmetro Qualificados (Dimensões em Polegadas) (ver 4.19.2.1) (I) Teste em Placa Número de Espécimesa Dimensões Qualificadas Soldas em Chanfro ou de Tampão (Plug) de Produção Flexãob de Face (Fig 4 12) Flexãob de Raiz (Fig 4 12) Flexãob Lateral (Fig 4 13) Análise Macrográf ica Espessura Nominal de Placa, Cano ou Tubo Qualificada, in Tipo de Solda de Teste (Figuras Aplicáveis) Espessura Nominal de Placa de Teste (T) in Mín Máx Chanfro (Fig 4 31 ou 4 32) 3/8 1 1 (Nota c) - 1/8 3/4 maxd Chanfro (Fig 4 21 4 22 ou 4 30) 3/8 < T <1 - - 2 - 1/8 2T rnaxd Chanfro (Fig 4 21 , 4 22 ou 4 30) 1 ou acima - - 2 - 1/8 Ilimitadod Tampão (Fig 4 38) 3/8 - - - 2 1/8 Ilimitado Soldas de Filete de Produção (Junta em T- e Oblíqua) Número de Espécimesa Dimensões Qualificadas Tipo de Solda de Teste (Figuras Aplicáveis) Espessura Nominal da Placa de Teste, T, in Rupturade Solda de Filete Análise Macrográfic a Flexãob Lateral Flexãob de Raiz Flexãob de Face Espessura Norninal de Placa Qualificada, in Ângulos Diedros Qualificadosh Mín Máx Mín Máx Chanfro (Fig 4 31 ou 4 32) 3/8 - - (Nota c) 1 1 1/8 Ilimitado 30° Ilimitado Chanfro (Fig 4 31 ou 4 32) 3/8< T<1 - - 2 - - 1/8 Ilimitado 30° Ilimitado Chanfro (Fig 4 21 , 4 22 ou 4 30) 1 - - 2 - - 1/8 Ilimitado 30° Ilimitado Opção Filete 1 (Fig 4 37) 1/2 1 1 - - - 1/8 Ilimitado 60° 135º Opção Filete 2 (Fig 4 33) 3/8 - - - 2 - 1/8 Ilimitado 60° 135º Opção Filete 3 (Fig 4 20) [Qualquer diâmetro de cano] > 1/8 - 1 - - - 1/8 Ilimitado 30° Ilimitado (2) Testes em Cano ou Tubulaçãof Número de Espécimesa Tamanho Nominal de Cano ou Tubo Qualificado, in Espessurad Nominal de Parede de Placa, Cano ou Tubo Qualificada, in Juntas de Topo em Chanfro CJP de Produção Somente Posições 1G e 2G Somente Posições 5G 6G e 6GR Tipo de Solda de Teste Tamanho Nominal de Cano de Teste, in EspessuraNo minal de Teste, in Flexão b de Face Flexão b de Raiz Flexãob Lateral Flexãob de Face Flexãob de Raiz Flexãob Lateral Mín Máx Mín Máx Chanfro 4 Ilimitado 1 1 (Nota c) 2 2 (Nota c) 3/4 4 1/8 3/4 Chanfro >4 3/8 1 1 (Nota c) 2 2 (Nota c) (Nota e) Ilimitado 1/8 3/4 Chanfro >4 > 3/8 - - 2 - - 4 (Nota e) Ilimitado 3/16 Ilimitado (Continua)
  • 173.
    AWS D1.1/D1.1M:2010 4.QUALIFICAÇÃO 153 Tabela 4.11 (Continuação) Qualificação de Soldador e Operador de Soldagem—Número e Tipo de Espécimes e Faixa de Espessura e Diâmetro Qualificados (Dimensões em Polegadas) (ver 4.19.2.1) (2) Teste em Cano ou Tubulaçãof (Cont ) Número de Espécimesa Dimensões Qualificadas Soldas em Chanfro CJP de Produção em Conexões em T-, Y-, ou K- Tamanho Nominal de Cano ou Tubo Qualificado, in Espessurac Nominal de Parede ou Placa Qualificada, in Ângulos Diedros Qualificadosg Tipo de Solda de Teste Tamanho Nominal do Cano de Teste, in Espessura Nominal de Teste, in Flexão Lateralb Análise Macrográ fica Mín Máx Mín Máx Mín Máx Chanfro em Cano (Fig 4 27) ≥ 6 O D ≥ /2 4 4 Ilimitado 3/16 Ilimitado 30° Ilimitado Chanfro em Cano (Fig 4 28) < 4 O D ≥ , 2 3 Nota i - 3/4 < 4 1/8 Ilimitado 30° Ilimitado Chanfro em Caixa (Fig 4 29) Ilimitado ≥ /2 4 4 Ilimitado (Somente caixa) Ilimitado (Somente caixa) 3/16 Ilimitado 30° Ilimitado Soldas de Filete de Produção em Conexões em T-, Y-, ou K- Número de Espécimesa Dimensões Qualificadas Tipo de Solda de Teste TamanhoNo minal de Cano deTeste, D Espessura Nominal de Teste, in Ruptura de Solda de Filete Análise Macrográ fica Flexão de Raizb Flexão de Faceb Tamanho Nominal de Cano ou Tubo Qualificado, in Espessura Nominal de Parede ou Placa Qualificada Ângulos Diedros Qualificadosg Mín Máx Mín Máx Mín Máx Posição 5G (Chanfro) Ilimitado ≥ /8 - - 2 (Nota c) 2 (Nota c) (Nota e) Ilimitado 1/8 (Nota d) Ilimitado (Nota d) 30° Ilimitado Opção 1- Filete (Fig 4 37)g - ≥ /2 I I - - 24 Ilimitado 1/8 Ilimitado 60° Ilimitado Opção 2- Filete (Fig 4 33)g - 3/8 - - 2 - 24 Ilimitado 1/8 Ilimitado 60° Ilimitado Opção 3- Filete (Fig 4 20) Ilimitado ≥ /8 - I - - D Ilimitado 1/8 Ilimitado 30° Ilimitado (3) Testes em Soldagem por Eletroescória e Eletrogás Soldas em Chanfro de Produção de Placa Número de Espécimesa Espessura Nominal de Placa Qualificada, in Tipo de Solda de Teste Espessura Nominal de Placa Testada, T, in Flexão Lateralb (ver Fig 4 13) Mín Máx Chanfro (Fig 4 36) < 1-1/2 2 1/8 T 1-1/2 2 1/8 Ilimitado a Todas as soldas devem ser inspecionadas visualmente (ver 4 31 1) Um cano, placa ou tubulação de teste deve ser requerido para cada posição testada, a menos que observado de outra forma b Exame radiográfico da placa, cano ou tubulação de teste pode ser realizado em lugar dos testes de flexão (ver 4 20 1 1) c Para placa ou espessura de parede de 3/8 in, um teste de flexão lateral pode ser substituído por cada um dos testes de flexão de raiz e face requeridos d Também qualifica para soldagem de qualquer tamanho de solda de filete ou PJP em qualquer espessura de placa, cano ou tubulação e O tamanho mínimo qualificado de cano deve ser l/2 do diâmetro de teste ou 4 in, o que for maior f Ver Tabela 4 10 para detalhes de chanfro apropriados g Duas p1acas requeridas, cada uma sujeita aos requisitos de espécime de teste descritos Uma p1aca deve ser soldada na posição 3F e as outras na posição 4F h Para ângulos diedro < 30°, ver 4 27 1 i Duas flexões de raiz e duas flexões de face
  • 174.
    AWS D1.1/D1.1M:2010 4.QUALIFICAÇÃO 154 Tabela 4.11 (Continuação) Qualificação de Soldador e Operador de Soldagem—Número e Tipo de Espécimes e Faixa de Espessura e Diâmetro Qualificados (Dimensões em Polegadas) (ver 4.19.2.1) (I) Teste na Placa Número de Espécimesa Dimensões Qualificadas Soldas em Chanfro de Tampão (Plug) de Produção Flexão de Faceb (Fig 4 12) Flexão de Raizb (Fig 4 12) Flexão Lateralb (Fig 4 13) Análise Macrográ fica Espessura Nominal de Placa, Cano ou Tubo Qualificada mm Tipo de Solda de Teste (Figuras Aplicáveis) Espessura Nominal de Placa de Teste, T, mm Mín Máx Chanfro (Fig 4 31 ou 4 32) 10 1 1 (Nota c) - 3 20 maxd Chanfro (Fig 4 21 4 22 ou 4 30) 10<T<25 - - 2 - 3 2T maxd Chanfro (Fig 4 21 4 22 ou 4 30) 25 ou over - - 2 - 3 Ilimitadod P1ug (Fig 4 38) 10 - - - 2 3 Ilimitado Soldas de Filete de Produção (junta em T- e Oblíqua) Número de Espécimesa Dimensões Qualificadas Ângulos Diedros Qualificadosh Tipo de Solda de Teste (Figuras Aplicáveis) Espessura Nominal de Placa de Teste, T, mm Ruptura de Solda de Filete Análise Macrográ fica Flexãob Lateral Flexãob de Raiz Flexãob de Face Espessura Norninal de Placa Qualificada, nnn Mín Máx Mín Máx Chanfro (Fig 4 31 ou 4 32) 10 - - (Nota c) 1 1 3 Ilimitado 30° Ilimitado Chanfro (Fig 4 31 ou 4 32) 10<T<25 - - 2 - - 3 Ilimitado 30° Ilimitado Chanfro (Fig 4 21 4 22 ou 4 30) 25 - - 2 - - 3 Ilimitado 30° Ilimitado Opção Filete 1 (Fig 4 37) 12 1 1 - - - 3 Ilimitado 60° 135° Opção Filete 2 (Fig 4 33) 10 - - - 2 - 3 Ilimitado 60° 135° Opção Filete 3 (Fig 4 20) [Qualquer diâmetro de cano] >3 - 1 - - - 3 Ilimitado 30° Ilimitado (2) Testes em Cano ou Tubulaçãoe Número de Espécimesa Tamanho Nominal de Cano ou Tubo Qualificado, mm Espessurad Nominal de Parede de Placa, Cano ou Tubo Qualificada, mm Chanfro CJP e Juntas de Topo de Produção Somente Posições 1G e 2G Somente Posições 5G 6G e 6GR Tipo de Solda deTeste Tamanho Nominal de Cano de Teste, mm Espessura Nominal deTeste, mm Flexãob de Face Flexãob de Raiz Flexãob Lateral Flexãob de Face Flexãob de Raiz Flexãob Lateral Mín Máx Mín Máx Chanfro ≤ Ilimitado 1 1 (Nota c) 2 2 (Nota c) 20 100 3 20 Chanfro > 100 ≤ 1 1 (Nota c) 2 2 (Nota c) (Nota e) Ilimitado 3 20 Chanfro > 100 >10 - - 2 - - 4 (Nota e) Ilimitado 5 Ilimitado (Continua)
  • 175.
    AWS D1.1/D1.1M:2010 4.QUALIFICAÇÃO 155 Tabela 4.11 (Continuação) Qualificação de Soldador e Operador de Soldagem—Número e Tipo de Espécimes e Faixa de Espessura e Diâmetro Qualificados (Dimensões em Polegadas) (ver 4.19.2.1) (2) Teste em Cano ou Tubulaçãof (Continuação) Soldas em Chanfro CJP de Produção em Conexões em T-, Y-, ou K- Número de Espécimesa Dimensões Qualificadas Tamanho Nominal de Cano ou Tubo Qualificado, mm Espessurad Nominal de Parede ou Placa Qualificada, mm Ângulos Diedros Qualificadosh Tipo de Solda de Teste Tamanho Nominal de Cano de Teste, mm Espessura Nominal de Teste, mm Flexãob Lateral Análise Macrográfic a Mín Máx Mín Máx Mín Máx Chanfro em Cano (Fig 4 27) ≥ 5 O D ≥ 2 4 - 100 Ilimitado 5 Ilimitado 30º Ilimitado Chanfro em Cano (Fig 4 28) < 100 O D ≥ 5 Nota i - 20 < 100 3 Ilimitado 30º Ilimitado Chanfro em Caixa (Fig 4 29) Ilimitado ≥ 2 4 4 Ilimitado (Apenas caixa) Ilimitado (Apenas caixa) 5 Ilimitado 30º Ilimitado Soldas de Filete de Produção em Conexões em T-, Y-, ou K- Número de Espécimesa Dimensões Qualificadas Tipo de Solda de Teste Tamanho Nominal de Cano de Teste, D Espessura Nominal de Teste, mm Ruptura de Solda de Filete Análise Macrográ fica Flexãob de Raiz Flexãob de Face Espessura Nominal de Placa Qualificada, nnn Espessura Nominal de Parede ou Placa Qualificada, mm Ângulos Diedros Qualificadosh Mín Máx Mín Máx Mín Máx Posição 5G (Chanfro ) Ilimitado ≥ 3 -- - 2 (Nota c) 2 (Nota c) (Nota e) Ilimitado 3 (Nota d) Ilimitado (Nota d) 30° Ilimitado Opção 1 - Filete (Fig 4 37)g - ≥ 2 1 - - - 600 Ilimitado 3 Ilimitado 30° Ilimitado Opção 2 - Filete (Fig 4 33)g - 10 - - 2 - 600 Ilimitado 3 Ilimitado 30° Ilimitado Opção 3 - Filete (Fig 4 20) Ilimitado ≥ 3 - 1 - - D Ilimitado 3 Ilimitado 60° Ilimitado (3) Testes em Soldagem por Eletroescória e Eletrogás Soldas em Chanfro de Produção de Placa Número de Espécimesa Espessura Nominal de Placa Qualificada, in Tipo de Solda de Teste Espessura Nominal de Placa Testada, T, in Flexãob Lateral (ver Fig 4 13) Mín Máx Chanfro (Fig 4 36) < 38 2 3 T 38 2 3 Ilimitado a Todas as soldas devem ser inspecionadas visualmente (ver 4 31 1) Um cano, placa ou tubulação de teste deve ser requerido para cada posição testada, a menos que observado de outra forma b Exame radiográfico da placa, cano ou tubulação de teste pode ser realizado em lugar dos testes de flexão (ver 4 20 1 1) c Para placa ou espessura de parede de 3/8 in, um teste de flexão lateral pode ser substituído por cada um dos testes de flexão de raiz e face requeridos d Também qualifica para soldagem de qualquer tamanho de solda de filete ou PJP em qualquer espessura de placa, cano ou tubulação e O tamanho mínimo qualificado de cano deve ser l/2 do diâmetro de teste ou 4 in, o que for maior f Ver Tabela 4 10 para detalhes de chanfro apropriados g Duas p1acas requeridas, cada uma sujeita aos requisitos de espécime de teste descritos Uma p1aca deve ser soldada na posição 3F e as outras na posição 4F h Para ângulos diedro < 30°, ver 4 27 1 i Duas flexões de raiz e duas flexões de face
  • 176.
    AWS D1.1/D1.1M:2010 4.QUALIFICAÇÃO 156 Tabela 4.12 Alteração em Variável Essencial de Desempenho de Equipe de Soldagem que Requer Requalificação (ver 4.23) Alterações de Variável Essencial em WPQR que Requerem Requalificação Equipe de Soldagem Soldadoresb Operadores de Soldagem b,c Soldadores Ponteadores (1) Para um processo não qualificado (GMAW-S é considerado um processo separado) X X X (2) Para um eletrodo SMAW com um número F- (ver Tabela 4 13) mais alto que o número F- do eletrodo WPQR X X (3) Para uma posição não qualificada X X X (4) Para um diâmetro ou espessura não qualificado X X (5) Para uma progressão vertical de soldagem não qualificada (aclive ou declive) X (6) A omissão de reforço (se usado no teste WPQR) X X (7) Para eletrodos múltiplos (se um único eletrodo foi usado no teste WPQR) mas não vice-versa Xa a Não para ESW ou EGW B Soldadores qualificados para SAW, GMAW, FCAW, ou GTAW devem ser considerados como operadores de soldagem qualificados no(s) mesmo(s) processo(s) e sujeitos às limitações de variável essencial do soldador c Uma solda em chanfro qualifica uma solda de tampão (slot) para a posição WPQR e as faixas de espessura, como mostrado na Tabela 4 11 Notas: 1 Um “x” indica aplicabilidade para a soldagem para a equipe de soldagem; uma área sombreada indica não aplicabilidade 2 WPQR = Registro de Qualificação de Desempenho de Soldagem Tabela 4.13 Grupos de Classificação de Eletrodo (ver Tabela 4.12) Designação de Grupo Classificação de Eletrodo AWS F4 EXX15, EXX16, EXX18, EXX48, EXX15-X, EXX16-X, EXX18-X F3 EXX10, EXX11, EXX10-X, EXX11-X F2 EXX12, EXX13, EXX14, EXX13-X F1 EXX20, EXX24, EXX27, EXX28, EXX20-X, EXX27-X
  • 177.
    AWS D1.1/D1.1M:2010 4.QUALIFICAÇÃO 157 Tabela 4.14 Requisitos de Teste CVN (ver 4.36) Processo de Soldagema Local do Teste Número de Espécimesb Temperatura de Teste ºF/ºC Tamanho do Espécime,d mm Mínima Energia Média Absorvidae pés-librasf [J] Mínima Energia Individual Absorvida,e pés-librasf [J] Mínima Média Percentual da Área de Cisalhamento, % Mínima Expansão Lateral Média, Mils/rnrn SMAW GTAW GMAW SAW Metal de Solda 3 (Nota c) 10X10 20 [27] 15 [20] (Nota f) (Nota f) Linha de Fusão +1 mm 3 (Nota c) 10X10 20 [27] 15 [20] (Nota f) (Nota f) ESW EGW FCAW-S FCAW-G Linha de Fusão +5 mm 3 (Nota c) 10X10 20 [27] 15 [20] (Nota f) (Nota f) a Uma WPS que combina FCAW-S com outro processo de soldagem deve ser especificamente testada para assegurar que critérios de teste CVN sejam atendidos na interface entre os depósitos de solda b O número alternativo de espécimes permitidos por local de teste é cinco Os valores mais altos e mais baixos devem ser descartados para minimizar parte da dispersão normalmente associada com teste CVN de soldas e HAZs c Temperaturas de teste devem ser especificadas em documentos ou especificações de contrato Quando espécimes de tamanho inferior são requeridos, e a largura dos espécimes através do entalhe é menos de 80% da espessura do metal base, a temperatura de teste deve ser reduzida em conformidade com a Tabela 4 15 d Espécimes de tamanho total devem ser usados quando os materiais de teste são de 7/16 in [11 mm] ou mais grossos Espécimes de tamanho inferior devem ser usados quando a espessura do material de teste é menor que 7/16 in [11 mm], ou quando a geometria da ligação soldada proíbe a remoção de amostras de tamanho total e Aplicável em soldas entre materiais base com um limite de escoamento mínimo especificado (SMYS) de 50 ksi [345 MPa] ou menos Critérios de aceitação de soldas entre materiais excedendo SYMS de 50 ksi [345 MPa] devem ser especificados por documentos ou especificações de contrato f Valores para cisalhamento percentual ou expansão lateral devem ser registrados quando especificado pelos documentos ou especificações de contrato Tabela 4.15 Redução de Temperatura de Teste CVN (ver 4.36.5) Para espécimes de teste CVN de tamanho inferior em que a largura através do entalhe é menos que 80% da espessura do metal base. Tamanho do Espécime mm Redução de Temperatura de Teste Abaixo da Temperatura de Teste Especificada ºF ºC 10 × 10 10 × 9 10 × 8 10 × 7,5 10 × 7 10 × 6,7 10 × 6 10 × 5 10 × 4 10 × 3,3 10 × 3 10 × 2,5 0 0 0 5 8 10 15 20 30 35 40 50 0 0 0 2,8 4,5 5,6 8,4 11,1 16,8 19,4 22,4 27,8 Exemplo: Se desenhos de projeto ou especificações indicam que testes CVN devem ser realizados a 32°F [0°C] e espécimes de menor tamanho de 10 mm × 5 mm são usados; a temperatura real de teste seria 12°F [–11°C] Observação: A redução nos valores mínimos de aceitação de energia para espécimes de tamanho inferior deve ser determinada em conformidade com A 370a-97, da ASTM, Tabela 9
  • 178.
    AWS D1.1/D1.1M:2010 4.QUALIFICAÇÃO 158 Tabulação de Posições de Solda em Chanfro Posição Referência de Diagrama Inclinação do Eixo Rotação da Face Plana A 0º a 15º 150º a 210º Horizontal B 0º a 15º 80° a 150° 210° a 280° Suspensa C 0º a 80º 0° a 80° 280° ao 360° Vertical D E 15° to 80° 80° to 90° 80° a 280° 0° a 360° Observações: 1. O plano de referência horizontal deve sempre ser tomado de forma a jazer abaixo da solda sob consideração. 2. A inclinação de eixo deve ser medida a partir do plano de referência horizontal em direção ao plano de referência vertical. 3. O ângulo de rotação da face deve ser determinado por uma linha perpendicular à face teórica da solda que passa através do eixo da solda. A posição de referência (0 ) de rotação da face invariavelmente aponta em direção oposta àquela na qual o ângulo do eixo aumenta. Quando olhando para o ponto P, o ângulo de rotação da face da solda deve ser medido numa direção de sentido horário a partir da posição de referência (0 ). Figura 4.1 – Posições de Soldas em Chanfro (ver 4.3.4)
  • 179.
    AWS D1.1/D1.1M:2010 4.QUALIFICAÇÃO 159 Tabulação de Posições de Soldas de Filete Posição Referência de Diagrama Inclinação de Eixo Rotação de Face Plana A 0º a 15º 150º a 210º Horizontal B 0º a 15º 125° a 150° 210° a 235° Suspensa C 0º a 80º 0° a 125° 235° ao 360° Vertical D E 15° to 80° 80° to 90° 125° a 235° 0° a 360° Figura 4.2 – Posições de Soldas de Filete (ver 4.3.4)
  • 180.
    AWS D1.1/D1.1M:2010 4.QUALIFICAÇÃO 160 Figura 4.3 – Posições de Placas de Teste para Soldas em Chanfro (ver 4.3.4)
  • 181.
    AWS D1.1/D1.1M:2010 4.QUALIFICAÇÃO 161 Figura 4.4 – Posições de Cano ou Tubulação de Teste para Soldas em Chanfro (ver 4.3.4)
  • 182.
    AWS D1.1/D1.1M:2010 4.QUALIFICAÇÃO 162 Figura 4.5 – Posições de Placa de Teste para Soldas de Filete (ver 4.3.4)
  • 183.
    AWS D1.1/D1.1M:2010 4.QUALIFICAÇÃO 163 Reproduzido de A3.0M/A3.0:2010, Standard Welding Terms and Definitions, Including Terms for Adhesive Bonding, Brazing, Soldering,Thermal Cutting, and Thermal Spraying, da AWS, Figura B.20, Miami: American Welding Society. Figura 4.6 - Posições de Cano ou Tubulação de Teste para Soldas de Filete (ver 4.3.4)
  • 184.
    AWS D1.1/D1.1M:2010 4.QUALIFICAÇÃO 164 Figura 4.7 – Locais de Espécimes de Teste em Cano de Teste Soldado (ver 4.9)
  • 185.
    AWS D1.1/D1.1M:2010 4.QUALIFICAÇÃO 165 Figura 4.8 – Locais de Espécimes de Teste para Tubulação de Caixa Soldada (ver 4.9)
  • 186.
    AWS D1.1/D1.1M:2010 4.QUALIFICAÇÃO 166 Observações: 1. A configuração de chanfro mostrada é meramente ilustrativa. A forma de chanfro testada deve estar em conformidade com a forma de chanfro de produção que está sendo qualificada. 2. Quando espécimes de teste CVN são requeridos, ver Cláusula 4, Parte D para requisitos. 3. Todas as dimensões são mínimas. Figura 4.9—Local de Espécimes de Teste em Placas de Teste Soldadas - ESW e EGW – Qualificação WPS (ver 4.9)
  • 190.
    AWS D1.1/D1.1M:2010 4.QUALIFICAÇÃO 170 a Um espécime de maior comprimento pode ser necessário quando usando um suporte de flexão do tipo integrado ou quando testando aço com um limite de escoamento de 90 ksi [620 MPa] ou mais. b Para placas com espessura acima de 1-1/2 in [38 mm], o espécime deve ser cortado em tiras aproximadamente iguais com T entre 3/4 in [20 mm] e 1-1/2 in [38 mm] e cada tira testada. c t = espessura de placa ou cano. Figura 4.13—Espécimes de Flexão Lateral (ver 4.9.3.1)
  • 191.
    AWS D1.1/D1.1M:2010 4.QUALIFICAÇÃO 171 Dimensões em polegadas [mm] Espessura Nominal de Placa de Teste, Tp Cano de Teste in [25 mm] 1 in [25 mm] < Tp < 1-1/2 in [38 mm] -1/2 in [38 mm] Diâmetro de 2 in [50 mm] & 3 in [75 mm] Diâmetro ou Cano de Tamanho de Trabalho Maior 6 in [150 mm] & 8 in [200 mm] A – Comprimento de seção reduzida Face mais larga da solda + 1/2 in [12 mm], 2-1/4 in [60 mm] min Face mais larga da solda + 1/2 in [12 mm], 2-1/4 in [60 mm] min L – Comprimento geral, mina Como requerido por equipamento de teste Como requerido por equipamento de teste W – Largura de seção reduzidab,c 3/4 in [20 mm] min 3/4 in [20 mm] min 3/4 in [20 mm] min 1/2 ± 0 01 (12 ± 0 025) 3/4 in [20 mm] min C – Largura da seção de aderência c,d W + 1/2 in [12 mm] min W + 1/2 in [12 mm] min W + 1/2 in [12 mm] min W + 1/2 in [12 mm] min W + 1/2 in [12 mm] min t – Espessura do espécimee,f Tp Tp Tp/n (Note f) Máximo possível com faces planas paralelas dentro do comprimento A r – Raio de filete, min 1/2 in [12 mm] 1/2 in [12 mm] 1/2 in [12 mm] 1/2 in [25 mm] 1/2 in [25 mm] a É desejável, se possível, fazer o comprimento da seção de aderência grande o suficiente para permitir que o espécime estenda até as alças uma distância igual a dois terços ou mais do comprimento das alças. b As extremidades da seção reduzida não devem diferir em largura por mais de 0,004 in [0,102 mm]. Além disso, também pode haver decréscimo gradual na largura a partir das extremidades para o centro, mas as larguras de qualquer das extremidades não deve ser 0,015 in [0,381 mm] maior que a largura no centro. c Larguras mais estreitas (W e C) podem ser usadas quando necessário. Em tais casos, a largura da seção reduzida deveria ser tão grande quanto a largura do material sendo testado permite. Se a largura do material é menor que W, os lados podem ser paralelos em todo o comprimento do espécime. d Para espécimes padrão do tipo placa, as extremidades do espécime devem ser simétricas com a linha de centro da seção reduzida no âmbito de 1/4 in [6 mm]. e A dimensão t é a espessura do espécime conforme fornecido nas especificações de material aplicáveis. A espessura nominal mínima de espécimes de largura de 1-1/2 in [38 mm] deve ser 3/16 in [5 mm] exceto conforme permitido pela especificação do produto. f Para placas com espessura acima de 1-1/2 in [38 mm], espécimes podem ser cortados em tiras aproximadamente iguais. Cada tira deve ter espessura de pelo menos 3/4 in [20 mm]. Os resultados de teste de cada tira devem atender os requisitos mínimos. Observação: Devido à capacidade limitada de algumas máquinas de teste de tensão, dimensões alternadas de espécime para aços da Tabela 4.9 podem ser usadas quando aprovado pelo Engenheiro. Figura 4.14—Espécimes de Tensão de Seção Reduzida (ver 4.9.3.4)
  • 192.
    AWS D1.1/D1.1M:2010 4.QUALIFICAÇÃO 172 Limite de escoamento Específico ou Real do Metal Base A in [mm] B in [mm] C in [mm] D in [mm] 50 ksi [345 MPa] & abaixo 1-1/2 [38,1] 3/4 [19,0] 2-3/8 [60,3] 1-3/16 [30,2] acima de 50 ksi [345 MPa] até 90 ksi [620 MPa] 2 [50,8] 1 [25,4] 2-7/8 [73,0] 1-7/16 [36,6] 90 ksi [620 MPa] & acima 2-1/2 [63,5] 1-1/4 [31,8] 3-3/8 [85,7] 1-11/16 [42,9] Observaçãoes: Êmbolo e superfícies interiores matriz devem ser acabados por usinagem. Figura 4.15—Separador de Teste de Flexão Guiado (ver 4.9.3)
  • 193.
    AWS D1.1/D1.1M:2010 4.QUALIFICAÇÃO 173 Limite de escoamento Específico ou Real do Metal Base, ksi [MPa] A in B in A Mm B mm 50 [345] & abaixo 1-1/2 3/4 38,1 19,0 acima de 50 [345] até 90 [620] 2 1 50,8 25,4 90 [620] & acima 2-1/2 1-1/4 63,5 21,8 Figura 4.16—Separador de Teste de Flexão Alternativo Integrado Guiado (ver 4.9.3) Limite de escoamento Específico ou Real do Metal Base, ksi [MPa] A in B in C mm A Mm B mm C mm 50 [345] & abaixo 1-1/2 3/4 2-3/8 38,1 19,0 60,3 acima de 50 [345] até 90 [620] 2 1 2-7/8 50,8 25,4 73,0 90 [620] & acima 2-1/2 1-1/4 3-3/8 63,5 21,8 85,7 Figura 4.17—Separador Alternativo de Teste de Flexão Guiado e Equipado com Rolete para Ejeção Inferior de Espécime de Teste (ver 4.9.3)
  • 194.
    AWS D1.1/D1.1M:2010 4.QUALIFICAÇÃO 174 Dimensões em polegadas Diâmetro Nominal Espécime Padrão Espécimes de Tamanho Pequeno Proporcional ao Padrão 0,500 in Round 0,350 in Round 0,250 in Round G – Comprimento do medidor 2,000 ± 0,005 1,400 ± 0,005 1,000 ± 0,005 D - Diâmetro (Note a) 0,500 ± 0,010 0,350 ± 0,007 0,250 ± 0,005 r – Raio de filete, min. 3/8 1/4 3/16 A – Comprimento de seção reduzida (Nota b), min. 2-1/4 1-3/4 1-1/4 Dimensões (versão métrica por ASTM E 8M) Diâmetro Nominal Espécime Padrão Espécimes de Tamanho Pequeno Proporcional ao Padrão 12,5 mm Round 9 mm Round 6 mm Round G – Comprimento do medidor 62,5 ± 0,1 45,0 ± 0,1 30,0 ± 0,1 D - Diâmetro (Nota a) 12,5 ± 0,2 9,0 ± 0,1 6,0 ± 0,1 r – Raio de filete min. 10 8 6 A – Comprimento de seção reduzida (Nota b), min. 74 54 36 a A seção reduzida pode ter um estreitamento gradual das extremidades em direção ao centro, com as extremidades não mais que 1% maiores em diâmetro que o centro (dimensão de controle). b Se desejado, o comprimento da seção reduzida pode ser aumentado para acomodar um extensômetro com qualquer comprimento de medidor conveniente. Marcas de referência para a medida de alongamento deveriam ser espaçadas no comprimento de medidor indicado. Observação: O comprimento de medidor e filetes deve ser como mostrado, mas as extremidades podem ser de qualquer forma para ajustar-se aos suportes da máquina de teste de tal forma que a carga deva ser axial. Se as extremidades serão mantidas em alças de cunha, é desejável, se possível, fazer o comprimento da seção de aderência grande o suficiente para permitir que o espécime estenda-se para as alças uma distância igual a dois terços ou mais do comprimento das alças. Figura 4.18—Espécime de Tensão de Metal Depositado (ver 4.9.3.6)
  • 195.
    AWS D1.1/D1.1M:2010 4.QUALIFICAÇÃO 175 POLEGADAS MILÍMETROS Tamanho de Solda T1 min. T2 min. Tamanho de Solda T1 min. T2 min. 1/8 3/16 1/4 5/16 3/8 1/2 5/8 3/4 >3/4 1/4 1/2 3/4 1 1 1 1 1 1 3/16 3/16 1/4 5/16 3/8 1/2 5/8 3/4 1 3 5 6 8 10 12 16 20 >20 6 12 20 25 25 25 25 25 25 5 5 6 8 10 12 16 20 25 Observação: Quando a espessura máxima de placa usada na produção é menor que o valor mostrado acima, a espessura máxima das peças de produção pode ser substituída por T1 e T2. Figura 4.19—Testes de Estabilidade de Soldas de Filete para Qualificação WPS (ver 4.12.2)
  • 196.
    AWS D1.1/D1.1M:2010 4.QUALIFICAÇÃO 176 Figura 4.20—Teste de Estabilidade de Solda de Filete em Cano—Qualificação WPS (ver 4.12.2)
  • 197.
    AWS D1.1/D1.1M:2010 4.QUALIFICAÇÃO 177 a A espessura de reforço deve ser 1/4 in [6 mm] min. a 3/8 in [10 mm] máx.; largura de reforço deve ser 3 in [75 mm] min. quando não removido para RT, ou então 1 in [25 mm] min. Observação: Quando RT é usado, soldas provisórias não devem estar na área de teste. Figura 4.21—Placa de Teste para Espessura Ilimitada—Qualificação de Soldador (ver 4.24.1) a A espessura de reforço deve ser 3/8 in [10 mm] min. a 1/2 in [12 mm] máx.; largura de reforço deve ser 3 in [75 mm] min. quando não removido para RT, ou então 1-1/2 in [40 mm] min. Observações: 1. Quando RT é usado, soldas provisórias não devem estar na área de teste. 2. A configuração de junta de uma WPS qualificada pode ser usada em lugar das configurações de chanfro mostradas aqui. Figura 4.22 – Placa de Teste para Espessura Ilimitada – Qualificação de Operador de Soldagem (ver 4.24.2)
  • 198.
    AWS D1.1/D1.1M:2010 4.QUALIFICAÇÃO 178 Figura 4.23 - Local de Espécime de Teste em Placa de Teste Soldada de Espessura de 1 in [25 mm] – Verificação de Consumíveis para Qualificação WPS de Soldas de Filete (ver 4.12.3)
  • 199.
    AWS D1.1/D1.1M:2010 4.QUALIFICAÇÃO 179 Observação: T = espessura de parede de cano ou tubo de caixa de qualificação Figura 4.24 – Junta de Topo Tubular – Qualificação de Soldador com ou sem Reforço (ver 4.27) Observação: T = espessura de parede de cano ou tubo de caixa de qualificação. Figura 4.25—Junta de Topo Tubular—Qualificação WPS com e sem Reforço (ver 4.13.1 e 4.13.2)
  • 200.
    AWS D1.1/D1.1M:2010 4.QUALIFICAÇÃO 180 Figura 4.26 – Teste de Calcanhar de Ângulo Agudo (Retenções Não Mostradas) (Ver 4.13.4.2)
  • 201.
    AWS D1.1/D1.1M:2010 4.QUALIFICAÇÃO 181 Figura 4.27 – Junta de Teste para Conexões em T-, Y-, e K- sem Reforço em Cano ou Tubulação de Caixa (≥6 in [150 mm] O.D.) – Qualificação de Soldador e WPS (ver 4.13.4.1 e 4.27)
  • 202.
    AWS D1.1/D1.1M:2010 4.QUALIFICAÇÃO 182 Figura 4.28 – Junta de Teste para Conexões em T-, Y-, e K- sem Reforço em Cano ou Tubulação de Caixa (< 4 in [100 mm] O.D.) – Qualificação de Soldador e WPS (ver 4.13.4.1 e 4.27)
  • 203.
    AWS D1.1/D1.1M:2010 4.QUALIFICAÇÃO 183 Figura 4.29 – Junta de Ângulo de Ensaio Macrográfico para Conexões em T-, Y-, e K- sem Reforço em Tubulação de Caixa para Soldas em Chanfro CJP - Qualificação WPS e de Soldador (ver 4.13.4.1 e 4.27)
  • 204.
    AWS D1.1/D1.1M:2010 4.QUALIFICAÇÃO 184 a Quando RT é usado, soldas provisórias não devem estar na área de teste. b A espessura de reforço deve ser 1/4 in [6 mm] min. a 3/8 in [10 mm] máx.; a largura do reforço deve ser 3 in [75 mm] min. quando não removido para RT, ou então 1 in [25 mm] min. Figura 4.30 – Placa de Teste Opcional para Espessura Ilimitada – Posição Horizontal– Qualificação de Soldador (ver 4.24.1)
  • 205.
    AWS D1.1/D1.1M:2010 4.QUALIFICAÇÃO 185 a Quando RT é usado, soldas provisórias não devem estar na área de teste. b A espessura de reforço deve ser 1/4 in [6 mm] min. a 3/8 in [10 mm] máx.; a largura de reforço deve ser 3 in [75 mm] min. quando não removido para RT, ou então 1 in [25 mm] min. c Para placa de 3/8 in [10 mm], um teste de flexão lateral pode ser substituído por cada um dos testes de flexão de face e raiz requeridos. Figura 4.31 – Placa de Teste para Espessura Limitada – Todas as Posições – Qualificação de Soldador (ver 4.24.1)
  • 206.
    AWS D1.1/D1.1M:2010 4.QUALIFICAÇÃO 186 a Quando RT é usado, soldas provisórias não devem estar na área de teste. b A espessura de reforço deve ser 1/4 in [6 mm] min. a 3/8 in [10 mm] máx.; a largura de reforço deve ser 3 in [75 mm] min. quando não removido para RT, ou então 1 in [25 mm] min. c Para placa de 3/8 in [10 mm], um teste de flexão lateral pode ser substituído por cada um dos testes de flexão de face e raiz requeridos. Figura 4.32 – Placa de Teste Opcional para Espessura Limitada – Posição Horizontal– Qualificação de Soldador (ver 4.24.1)
  • 207.
    AWS D1.1/D1.1M:2010 4.QUALIFICAÇÃO 187 Figure 4.33 – Placa de Teste de Flexão de Raiz de Solda de Filete – Qualificação de Soldador ou Operador de Soldagem - Opção 2 (Ver 4.29 ou 4.26)
  • 208.
    AWS D1.1/D1.1M:2010 4.QUALIFICAÇÃO 188 a Para espessura de parede de 3/8 in [10 mm], um teste de flexão lateral pode ser substituído por cada um dos testes de flexão de face e raiz requeridos. Figura 4.34 – Local de Espécime de Teste em Cano e Tubulação de Caixa de Teste Soldados – Qualificação de Soldador (ver 4.20.1.2)
  • 209.
    AWS D1.1/D1.1M:2010 4.QUALIFICAÇÃO 189 Figura 4.35 – Método de Ruptura de Espécime - Qualificação de Soldador Ponteador (ver 4.32) a Abertura de raiz “R” estabelecida por WPS. b T = máximo a ser soldado na construção, mas não precisa exceder 1-1/2 in [38 mm]. c Extensões não precisam ser usadas se a junta é de comprimento suficiente para fornecer 17 in [430 mm] de boa solda. Figura 4.36 – Junta de Topo para Qualificação de Operador de Soldagem - ESW e EGW (ver 4.24.2)
  • 210.
    AWS D1.1/D1.1M:2010 4.QUALIFICAÇÃO 190 a L = 8 in [200 mm] min. (soldador), 15 in [380 mm] min. (operador de soldagem). b Qualquer das extremidades pode ser usada para o espécime de análise macrográfica requerido. A outra extremidade pode ser descartada. Figura 4.37 – Ruptura de Solda de Filete e Placa de Ensaio Macrográfico – Qualificação de Soldador ou Operador de Soldagem—Opção 1 (ver 4.29 ou 4.26)
  • 211.
    AWS D1.1/D1.1M:2010 4.QUALIFICAÇÃO 191 a L1 = 2 in [50 mm] min. (soldador), 3 in [75 mm] min. (operador de soldagem); L2 = 3 in [75 mm] min. (soldador), 5 in [125 mm] min. (operador de soldagem). Figura 4.38 – Placa de Ensaio Macrográfico de Solda de Tampão (Plug) – Qualificação de Soldador ou Operador de Soldagem (ver 4.15) e Qualificação WPS (ver 4.30)
  • 212.
    AWS D1.1/D1.1M:2010 4.QUALIFICAÇÃO 192 Figura 4.39 – Espécime de Ruptura de Solda de Filete – Qualificação de Soldador Ponteador (ver 4.20.2)
  • 213.
    AWS D1.1/D1.1M:2010 4.QUALIFICAÇÃO 193 Figura 4.40 – Locais de Espécime de Teste CVN (ver 4.35.1)
  • 214.
    AWS D1.1/D1.1M:2010 194 5. Fabricação 5.1Escopo Todas as provisões aplicáveis dessa seção devem ser observadas na fabricação e ereção de estruturas e montagens soldadas produzidas sob qualquer processo aceitável sob este código (ver 3.2 e 4.15). 5.2 Metal Base 5.2.1 Metal Base Especificado. Os documentos de contrato devem designar a especificação e classificação do metal base a ser usado. Quando soldagem está envolvida na estrutura, metais base aprovados, listados na Tabela 3.1 ou Tabela 4.9, deveriam ser usados sempre que possível. 5.2.2 Metal Base para Reforço, Espaçadores e Guia de Solda 5.2.2.1 Guias de Solda. Guias de solda usadas em soldagem devem estar em conformidade com os seguintes requisitos: (1) Quando usadas em soldagem com um aço aprovado listado na Tabela 3.1 ou Tabela 4.9, elas podem ser de qualquer dos aços listados na Tabela 3.1 ou Tabela 4.9. (2) Quando usadas em soldagem com um aço qualificado em conformidade com 4.8.3 elas podem ser: (a) Do aço qualificado, ou (b) De qualquer aço listado na Tabela 3.1 ou Tabela 4.9 5.2.2.2 Reforço e Barras de Prateleira. Aço para reforço e barras de prateleira devem estar em conformidade com os requisitos de 5.2.2.1 ou A 109 T3 e T4, da ASTM, exceto aço de limite de escoamento mínimo de 100 ksi [690 MPa] como reforço deve ser usado apenas com aços de limite de escoamento mínimo de 100 ksi [690 MPa]. 5.2.2.3 Espaçadores. Espaçadores devem ser do mesmo material do metal base. 5.3 Consumíveis de Soldagem e Requisitos de Eletrodo 5.3.1 Geral 5.3.1.1 Certificação para Combinações para Eletrodos ou Eletrodo-Fluxo. Quando requisitado pelo Engenheiro, o Empreiteiro ou construtor deve fornecer certificação de que a combinação de eletrodo ou eletrodo-fluxo está em conformidade com os requisitos da classificação. 5.3.1.2 Adequação de Classificação. A classificação e tamanho do eletrodo, comprimento de arco, voltagem, e amperagem devem ser adequadas à espessura do material, tipo de chanfro, posições de soldagem e outras circunstâncias relativas ao trabalho. A corrente de soldagem deve estar dentro da faixa recomendada pelo fabricante do eletrodo. 5.3.1.3 Gás de Proteção. Um gás ou mistura de gases usados para proteção devem estar em conformidade com os requisitos de A5.32, Specification for Welding Shielding Gases, da AWS. Quando requisitado pelo Engenheiro, o Empreiteiro ou construtor deve fornecer certificação do fabricante de gás de que o gás ou mistura de gases está em conformidade com os requisitos de ponto de orvalho de A5.32, da AWS. Quando misturados no local de soldagem, medidores adequados devem ser usados para estabelecer a proporção dos gases. A porcentagem de gases deve estar em conformidade com os requisitos da WPS. 5.3.1.4 Armazenamento. Consumíveis de soldagem que tenham sido removidos do pacote original devem ser protegidos e armazenados de tal forma que as propriedades de soldagem não sejam afetadas. 5.3.1.5 Condição. Eletrodos devem estar secos e em condições apropriadas de uso. 5.3.2 Eletrodos SMAW. Eletrodos para SMAW devem estar em conformidade com os requisitos da última edição de A5.1/A5.1M, Specification for Carbon Steel Electrodes for Shielded Metal Arc Welding, da AWS ou com os requisitos de AWS A5.5/A5.5M, Specification for Low-Alloy Steel Electrodes for Shielded Metal Arc Welding, da AWS. 5.3.2.1 Condições de Armazenamento de Eletrodo com Baixo Nível de Hidrogênio. Todos os
  • 215.
    AWS D1.1/D1.1M:2010 5.FABRICAÇÃO 195 eletrodos que tenham revestimentos de baixo hidrogênio em conformidade com A5.1 da AWS e A5.5 da AWS devem ser adquiridos em contêineres hermeticamente vedados ou devem ser cozidos pelo usuário em conformidade com 5.3.2.4 antes do uso. Imediatamente após a abertura do contêiner hermeticamente vedado, os eletrodos devem ser armazenados em fornos mantidos a uma temperatura de pelo menos 250°F [120°C]. Eletrodos devem ser recozidos não mais que uma vez. Eletrodos que tenham sido molhados não devem ser usados. 5.3.2.2 Períodos Aprovados de Tempo de Exposição Atmosférica. Depois que contêineres hermeticamente vedados são abertos ou após eletrodos serem removidos de fornos de cozimento ou armazenamento, a exposição do eletrodo à atmosfera não deve exceder os valores mostrados na coluna A, Tabela 5.1, para a classificação específica de eletrodo com designadores suplementares opcionais, quando aplicável. Eletrodos expostos à atmosfera por períodos menores que aqueles permitidos pela coluna A, Tabela 5.1 podem ser devolvidos para um forno de retenção mantido a 250°F [120°C] min.; depois de um período mínimo de retenção de quatro horas a 250°F [120°C] min. os eletrodos podem ser emitidos novamente. 5.3.2.3 Períodos Alternativos de Tempo de Exposição Atmosférica Estabelecidos por Testes. Os valores alternativos de tempo de exposição mostrados na coluna B, na Tabela 5.1, podem ser usados contanto que testes estabeleçam o tempo máximo permitido. Os testes devem ser realizados em conformidade com A5.5 da AWS para cada classificação de eletrodo e cada fabricante de eletrodo. Tais testes devem estabelecer que os valores máximos de conteúdo de umidade de A5.5 da AWS não sejam excedidos. Adicionalmente, eletrodos de revestimento de baixo hidrogênio E70XX ou E70XX-X (A5.1 ou A5.5 da AWS) devem ser limitados a um conteúdo máximo de umidade que não exceda 0,4% por peso. Esses eletrodos não devem ser usados em combinações relativas de temperatura-umidade que excedam a umidade relativa ou o conteúdo de umidade do ar que prevaleceu durante o programa de teste. Para aplicação apropriada dessa subcláusula, ver Anexo F para o gráfico com conteúdo sobre temperatura- umidade e seus exemplos. O gráfico mostrado no Anexo F, ou qualquer gráfico psicométrico padrão, deve ser usado na determinação dos limites de temperatura-umidade relativa. 5.3.2.4 Eletrodos de Cozimento. Eletrodos expostos à atmosfera por períodos maiores que aqueles permitidos na Tabela 5.1 devem ser cozidos como segue: (1) Todos os eletrodos que tenham revestimentos de baixo hidrogênio em conformidade com A5.1 da AWS devem ser cozidos por pelo menos duas horas entre 500°F e 800°F [260°C e 430°C], ou (2) Todos os eletrodos que tenham revestimento de baixo hidrogênio em conformidade com A5.5 da AWS devem ser cozidos por pelo menos uma hora a temperaturas entre 700°F e 800°F [370°C e 430°C]. Todos os eletrodos devem ser colocados em um forno adequado a uma temperatura que não exceda metade da temperatura final de cozimento por um mínimo de meia hora antes de aumentar a temperatura do forno até a temperatura final de cozimento. O tempo de cozimento final deve começar após o forno atingir a temperatura final de cozimento. 5.3.2.5 Restrições de Eletrodo para Aços A 514 ou A 517 da ASTM. Quando usados para soldar aços A 514 ou A 517 da ASTM, eletrodos de qualquer classificação mais baixa que E100XX-X, exceto por E7018M e E70XXH4R, devem ser cozidos por pelo menos uma hora a temperaturas entre 700°F e 800°F [370°C e 430°C] antes de serem usados, tenham eles sido fornecidos em contêineres hermeticamente vedados ou não. 5.3.3 Eletrodos e Fluxos SAW. SAW pode ser realizada com um ou mais eletrodos únicos, um ou mais eletrodos paralelos, ou combinações de eletrodos únicos e paralelos. O espaçamento entre arcos deve ser tal que a cobertura de escória sobre o metal de solda produzida por um arco guia não resfrie o suficiente para impedir o depósito de solda apropriado de um eletrodo seguinte. SAW com múltiplos eletrodos pode ser usada por qualquer passe de chanfro ou de solda de filete. 5.3.3.1 Requisitos de Combinação Eletrodo- Fluxo. Os eletrodos nus e fluxo usados em combinação de aços para SAW devem estar em conformidade com os requisitos da última edição de A5.17, Specification for Cabon Steel Electrodes and Fluxes for Submerged Arc Welding, da AWS ou com os requisitos da última edição de A5.23, Specification for Low Alloy Steel Electrodes and Fluxes for Submerged Arc Welding, da AWS. 5.3.3.2 Condição de Fluxo. Fluxo usado para SAW deve estar seco e livre de contaminação por poeira, óxido de ferro ou outro corpo estranho. Todo fluxo deve ser adquirido em pacotes que possam ser armazenados, sob condições normais, por pelo menos seis meses sem que tal armazenagem afete suas características de soldagem ou propriedades de solda. Fluxo proveniente de pacotes danificados deve ser descartado ou deve ser seco a uma temperatura mínima de 500°F [260°C] por uma hora antes do uso. O fluxo deve ser colocado em um sistema de descarte logo após a abertura de um pacote, ou se usado de um pacote aberto, uma polegada do topo deve ser descartada. Fluxo que tenha sido molhado não deve ser usado. 5.3.3.3 Recuperação de Fluxo. Fluxo SAW que não tenha sido derretido durante a operação de soldagem pode ser reutilizado após recuperação por aspiração, coleta, varredura ou outros meios. O construtor de soldagem deve ter um sistema para coletar fluxo não derretido, adicionar novo fluxo, e soldar com a mistura desses dois, de tal forma que a composição de fluxo e distribuição de tamanho de partícula na pudlagem de solda sejam relativamente constantes.
  • 216.
    AWS D1.1/D1.1M:2010 5.FABRICAÇÃO 196 5.3.3.4 Escória Prensada. Escória prensada pode ser usada contanto que tenha sua própria marca, usando o nome do prensador e a designação da marca. Além disso, cada lote seco ou batch ou mistura seca (lote) de fluxo, como definido em A5.01, Filler Metal Procurement Guidelines, da AWS, deve ser testado em conformidade com Schedule I de A5.01 da AWS e classificado pelo Empreiteiro ou prensador por A5.17 ou A5.23, da AWS, conforme aplicável. 5.3.4 Eletrodos GMAW/FCAW. Os eletrodos para GMAW ou FCAW devem estar em conformidade com os requisitos de 5.3.4.1 ou 5.3.4.2, conforme aplicável. 5.3.4.1 Metal de Solda de Limite de escoamento Igual ou Menor que 60 ksi [415 MPa]. Eletrodos para produzir metal de solda com limites de elasticidade mínimos especificados de 60 ksi [415 MPa] ou menos devem estar em conformidade com a última edição de A5.18/A5.18M, Specification for Carbon Steel Electrodes and Rods for Gas Shielded Arc Welding, da AWS, ou A5.20/A5.20M, Specification for Carbon Steel Electrodes for Flux Cored Arc Welding, da AWS, conforme aplicável. 5.3.4.2 Metal de Solda de Limite de escoamento Maior que 60 ksi [415 MPa]. Eletrodos para produzir metal de solda com limites de elasticidade especificados maiores que 60 ksi [415 MPa] devem estar em conformidade com a última edição de A5.28/A5.28M, Specification for Low-Alloy Steel Electrodes and Rods for Gas Shielded Arc Welding, da AWS, ou A5.29/A5.29M, Specification for Low Alloy Steel Electrodes for Flux Cored Arc Welding, da AWS, conforme aplicável. 5.3.5 GTAW 5.3.5.1 Eletrodos de Tungstênio. A corrente de soldagem deve ser compatível com o diâmetro e tipo ou classificação de eletrodo. Eletrodos de tungstênio devem estar em conformidade com A5.12, Specification for Tungsten and Tungsten Alloy Electrodes for Arc Welding and Cutting, da AWS. 5.3.5.2 Metal de Adição. O metal de adição deve estar em conformidade com todos os requisitos da última edição de A5.18 ou A5.28 e A5.30, Specification for Consumable Inserts, da AWS, conforme aplicável. 5.4 Processos ESW e EGW 5.4.1 Limitações de Processo. Os processos ESW e EGW devem ser restritos ao uso da Tabela 3.1, aços Grupo I, II, e III, exceto que ESW e EGW de A 710 não devem ser permitidas. 5.4.2 Condição de Eletrodos e Tubos de Guia. Eletrodos e tubos de guia consumíveis devem estar secos, limpos e em condições adequadas para uso. 5.4.3 Condição de Fluxo. Fluxo usado para ESW deve estar seco e livre de contaminação por poeira, óxido de ferro ou outro corpo estranho. Todo fluxo deve ser adquirido em pacotes que podem ser armazenados, sob condições normais, por pelo menos seis meses sem tal armazenamento afetar suas características de soldagem ou propriedades de solda. Fluxo proveniente de pacotes danificados em trânsito ou por manipulação devem ser descartados ou devem ser secos a uma temperatura mínima de 250°F [120°C] por uma hora antes do uso. Fluxo que tenha sido molhado não deve ser usado. 5.4.4 Inícios e Interrupções de Soldagem. Soldas devem ser iniciadas de tal maneira que permita a formação de calor suficiente para fusão completa do metal de solda às faces em chanfro da junta. Soldas que foram interrompidas em qualquer ponto na junta de solda por tempo suficiente para permitir que a escória ou poça de fusão comece a se solidificar podem ser reiniciadas e completadas, contanto que a solda completa seja examinada por UT por um mínimo de 6 in [150 mm] em cada lado do reinício e, a menos que proibido por geometria da junta, também confirmada por RT. Todos os referidos locais de reinício devem ser registrados e relatados ao Engenheiro. 5.4.5 Pré-aquecimento. Por causa da característica de alto aporte de calor desses processos, o pré- aquecimento não é normalmente requerido. No entanto, nenhuma solda deve ser realizada quando a temperatura do metal base metal no ponto de soldagem for abaixo de 32°F [0°C]. 5.4.6 Reparos. Soldas que tenham descontinui-dades proibidas pela Cláusula 6, Parte C devem ser reparadas como permitido por 5.26 utilizando um processo de soldagem qualificado, ou a solda inteira deve ser removida e substituída. 5.4.7 Requisitos de Aço Exposto às Intempéries. Para ESW e EGW de aplicações de aço exposto, nu, sem pintura, de ASTM A 588 requerendo metal de solda com resistência à corrosão atmosférica e características de coloração similares às do metal base, a combinação eletrodo-fluxo deve estar em conformidade com 4.18.2, e a composição química do metal de adição deve estar em conformidade com a Tabela 3.3. 5.5 Variáveis WPS. As variáveis de soldagem devem estar em conformidade com uma WPS por escrito (ver Anexo N, Formulário N-1, como um exemplo). Cada passe terá fusão completa com o metal base adjacente, e de tal forma que não haja depressões ou mordeduras indevidas na extremidade da solda. A concavidade excessiva de passes iniciais deve ser evitada para prevenir trinca nas raízes de juntas sob restrição. Todos os soldadores, operadores de soldagem e soldadores ponteadores devem ser informados sobra o uso apropriado da WPS, e a WPS aplicável deve ser seguida durante a realização da soldagem.
  • 217.
    AWS D1.1/D1.1M:2010 5.FABRICAÇÃO 197 5.6 Temperaturas de Pré- aquecimento e Interpasse O metal base deve ser pré-aquecido, se requerido, a uma temperatura não menor que o valor mínimo listado na WPS (ver 3.5 para limitações pré-qualificadas de WPS e Tabela 4.5 para limitações de variável essencial qualificadas de WPS). Para combinações de metais base, o pré-aquecimento mínimo deve ser baseado no pré-aquecimento mínimo mais alto. Esse pré-aquecimento e todas as temperaturas mínimas de interpasse subsequentes devem ser mantidos durante a operação de soldagem por uma distância pelo menos igual à espessura da parte soldada mais grossa (mas não menos que 3 in [75 mm]) em todas as direções a partir do ponto de soldagem. Requisitos de temperatura mínima de interpasse devem ser considerados iguais aos requisitos de pré- aquecimento, a menos que indicado de outra forma na WPS. A temperatura de pré-aquecimento e interpasse deve ser verificada logo antes de iniciar o arco para cada passe. 5.7 Controle de Aporte de Calor para Aços Resfriados e Temperados. Quando aços resfriados e temperados são soldados, o aporte de calor deve ser restrito em conjunção com as temperaturas máximas de pré-aquecimento e interpasse requeridas. Tais considerações devem incluir o aporte de calor adicional produzido em soldagem simultânea nos dois lados de um membro comum. As limitações anteriores devem estar em conformidade com as recomendações do produtor. A goivagem com oxigênio de aço resfriado e temperado deve ser proibida. 5.8 Tratamento Térmico de Alívio de Tensão. Quando requerido por documentos de contrato, montagens soldadas devem sofrer tratamento térmico de alívio de tensão. Usinagem final após alívio de tensão deve ser considerada quando necessário para manter tolerâncias dimensionais. 5.8.1 Requisitos. O tratamento de alívio de tensão deve estar em conformidade com os seguintes requisitos: (1) A temperatura do forno não deve exceder 600°F [315°C] ao tempo em que a montagem soldada é colocada nele. (2) Acima de 600°F [315°C], a taxa de aquecimento não deve ser maior que 400°F [204°C] por hora dividida pela espessura máxima do metal na parte mais grossa, em polegadas, mas de forma alguma mais que 400°F [204°C] por hora. Acima de 600°F [315°C], a taxa de aquecimento em °C/h não deve exceder 5600 dividido pela espessura máxima do metal, em milímetros, mas não mais que 428°F/h [220°C/h]. Durante o período de aquecimento, variações de temperatura através da porção da parte sendo aquecida não devem ser maiores que 250°F [140°C] dentro de qualquer intervalo de comprimento de 15 pés [5 m]. As taxas de aquecimento e resfriamento não precisam ser menores que 100°F [55°C] por hora. No entanto, para todos os casos, a consideração de câmaras fechadas e estruturas complexas pode indicar taxas reduzidas de aquecimento e resfriamento para evitar dano estrutural devido a gradientes térmicos excessivos. (3) Depois que uma temperatura máxima de 1100°F [600°C] é atingida em aços resfriados e temperados, ou uma faixa média de temperatura entre 1100°F e 1200°F [600°C e 650°C] é atingida em outros aços, a temperatura da montagem deve ser mantida dentro dos limites especificados por um tempo não menor do que o especificado na Tabela 5.2, baseado na espessura de solda. Quando o alívio de tensão especificado é para estabilidade dimensional, o tempo de retenção não deve ser menor que o especificado na Tabela 5.2, baseado na espessura da parte mais grossa. Durante o período de retenção não deve haver diferença maior que 150°F [85°C] entre as temperaturas mais alta e mais baixa através da porção da montagem sendo aquecida. (4) Acima de 600°F [315°C], o resfriamento deve ser feito em um forno fechado ou câmara de resfriamento a uma taxa não maior que 500°F [260°C] por hora, dividido pela espessura máxima do metal da parte mais grossa em polegadas, mas de forma alguma mais que 500°F [260°C] por hora. A partir de 600°F [315°C], a montagem pode ser resfriada em ar parado. 5.8.2 PWHT Alternativo. Como alternativa, quando PWHT é impraticável para as limitações de temperatura estabelecidas em 5.8.1, montagens soldadas podem sofrer alívio de tensão a temperaturas mais baixas por períodos mais longos de tempo, como dado na Tabela 5.3. 5.8.3 Aços Não Recomendados para PWHT. O alívio de tensão de ligações soldadas em a ç o s ASTM A 514, ASTM A 517, ASTM A 709 Graus 100 (690) e 100W (690W) e ASTM A 710 geralmente não é recomendada. Alívio de tensão pode ser necessário para aquelas aplicações em que ligações soldadas devem ser requeridas para reter estabilidade dimensional durante a usinagem ou em que a corrosão por tensão pode estar envolvida, sendo que nenhuma das condições é exclusiva de ligações soldadas envolvendo aços A 514 da ASTM, A 517 da ASTM, A 709 Graus 100 (690) e 100W (690W) da ASTM e A 710 da ASTM. No entanto, os resultados de testes de tenacidade ao entalhe têm mostrado que PWHT pode na verdade prejudicar o metal de solda e a tenacidade HAZ, e trincas intergranulares podem às vezes ocorrer na região de grãos grossos da solda HAZ.
  • 218.
    AWS D1.1/D1.1M:2010 5.FABRICAÇÃO 198 5.9 Reforço, Gás de Reforço ou Encaixes. Soldas em chanfro CJP podem ser feitas com ou sem o uso de gás de reforço, reforço ou encaixes consumíveis, ou podem ter a raiz da solda inicial goivada, lascada ou removida de outra forma do metal bom antes que a soldagem seja começada no segundo lado. 5.10 Reforço. Raízes de soldas em chanfro ou de filete podem ser reforçadas por cobre, fluxo, fita de vidro, cerâmica, pó de ferro ou materiais similares para evitar fundição através. Elas também podem ser vedadas por meio de passes de solda depositados com eletrodos de baixo hidrogênio se SMAW é usado, ou por outros processos de soldagem a arco. Reforço de aço deve estar em conformidade com os seguintes requisitos: 5.10.1 Fusão. Soldas em chanfro feitas com o uso de reforço de aço devem ter o metal de solda completamente fundido com o reforço. 5.10.2 Reforço de Comprimento Total. Exceto conforme permitido abaixo, reforço de aço deve ser feito de forma continua para todo o comprimento da solda. Todas as juntas no reforço de aço devem ser juntas em topo de soldas em chanfro CJP que atendam todos os requisitos da Cláusula 5 deste código. Para aplicações estaticamente carregadas, reforço para soldas para as extremidades de seções fechadas, tais como seções estruturais ocas (HSS), são permitidos desde que feitos de um ou dois pedaços com descontinuidades desemendadas quando todas as seguintes condições forem atingidas: (1) A espessura nominal da parede da seção fechada não deve exceder 5/8 in [16 mm]. (2) A seção fechada fora do perímetro não exceder 64 in [163 mm]. (3) O reforço for transversal ao eixo longitudinal da seção fechada. (4) A interrupção no reforço não exceder 1/4 in [6 mm]. (5) A solda com reforço descontínuo não estiver mais perto de outros tipos de conexões que o diâmetro HSS ou a dimensão principal da seção transversal. (6) A interrupção no reforço não estiver localizada nos cantos. Para colunas de caixa estaticamente carregadas, reforço descontínuo é permitido nos cantos soldados CJP, em emendas de campo e em detalhes de conexão. Reforço descontínuo é permitido em outras seções fechadas quando aprovado pelo Engenheiro. 5.10.3 Espessura do Reforço. A espessura nominal mínima recomendada de barras de reforço, dado que o reforço deve ser de espessura suficiente para evitar fundido através, é mostrada na seguinte tabela: Espessura, min. Processo in mm GTAW 1/8 3 SMAW 3/16 5 GMAW 1/4 6 FCAW-S 1/4 6 FCAW-G 3/8 10 SAW 3/8 10 OBSERVAÇÃO: Reforço de aço para cano e tubulação comercialmente disponível é aceitável, contanto que não haja evidência de fusão em superfícies interiores expostas. 5.10.4 Conexões Não Tubulares Carregadas Ciclicamente. Para estruturas ciclicamente carregadas, reforços de aço de soldas que sejam transversais à direção da tensão computada devem ser removidos, e as juntas devem ser retificadas ou receber acabamento para ficarem lisas. Reforços de aço de soldas que sejam paralelos à direção de tensão ou que não estejam sujeitos à tensão computada não precisam ser removidos, a menos que especificado pelo Engenheiro. 5.10.4.1 Reforços Anexados Externamente. Quando o reforço de solda de soldas longitudinais em estruturas ciclicamente carregadas é externamente anexado ao metal base por soldagem, tal soldagem deve ser contínua para o comprimento do reforço. 5.10.5 Conexões Carregadas Estaticamente. Reforço de aço para soldas em estruturas carregadas estaticamente (tubulares e não tubulares) não precisa ser soldado em todo o comprimento e não precisa ser removido a menos que especificado pelo Engenheiro. 5.11 Equipamentos de Corte e Soldagem Todo equipamento de soldagem e corte térmico deve ser projetado e fabricado, e deve estar em tais condições que permitam à equipe designada seguir os procedimentos e conseguir os resultados descritos ao longo deste código. 5.12 Ambiente de Soldagem 5.12.1 V e l o c i d a d e Máxima de Vento. GMAW, GTAW, EGW, ou FCAW-G não devem ser feitas em correntes de ar ou vento a menos que a solda esteja protegida por um abrigo. Tal abrigo deve ser de forma e material apropriados para reduzir a velocidade do vento nas proximidades da solda a um máximo de cinco milhas por hora [oito quilômetros por hora]. 5.12.2 Temperatura Mínima Ambiente. A soldagem nãodeveserfeita
  • 219.
    AWS D1.1/D1.1M:2010 5.FABRICAÇÃO 199 (1) quando a temperatura ambiente é mais baixa que 0°F [–20°C], ou (2) quando superfícies estão molhadas ou expostas a chuva, neve, ou (3) altas velocidades de vento, ou (4) quando a equipe de soldagem está sujeita a condições inclementes. OBSERVAÇÃO: Zero °F (-20 ºC) não significa a temperatura ambiente do clima, mas a temperatura nas proximidades imediatas da solda. A temperatura ambiente no clima pode estar abaixo de 0°F [–20°C], mas uma estrutura aquecida ou abrigo aquecido ao redor da área sendo soldada pode manter a temperatura adjacente à ligação soldada a 0°F [–20°C] ou mais alta. 5.13 Conformidade com o Projeto Os tamanhos e comprimentos de soldas não devem ser menores que aqueles especificados por requisitos de projeto e desenhos de detalhe, exceto como permitido na Tabela 6.1. O local de soldas não deve ser alterado sem aprovação do Engenheiro. 5.14 Tamanhos Mínimos de Solda de Filete O tamanho mínimo de solda de filete, exceto para soldas de filete usadas para reforçar soldas em chanfro, deve ser como mostrado na Tabela 5.8. O tamanho mínimo de solda de filete deve aplicar-se em todos os casos, a menos que desenhos de projeto especifiquem soldas de um tamanho maior. 5.15 Preparação de Metal Base Superfícies nas quais o metal de solda será depositado devem ser lisas, uniformes e livres de rebarbas, dilacerações, trincas e outras descontinuidades que afetariam adversamente a qualidade ou resistência da solda. Superfícies a serem soldadas e superfícies adjacentes a uma solda devem também estar livres de crostas soltas ou grossas, escória, ferrugem, umidade, graxa e outro material estranho que impediria uma soldagem apropriada ou produziria fumaças indesejáveis. Óxido de ferro que pode suportar escovação com escova metálica, um pequeno revestimento antiferrugem ou composto anti-respingo pode remanescer com a seguinte exceção: para traves em estruturas ciclicamente carregadas, todo óxido de ferro deve ser removido das superfícies em que soldas flange-a-braçadeira serão feitas. 5.15.1 Descontinuidades Produzidas na Fábrica. Os limites de aceitabilidade e o reparo de descontinuidades de superfície de corte observados visualmente devem estar em conformidade com a Tabela 5.4, na qual o comprimento da descontinuidade é a dimensão de extensão visível na superfície de corte do material e a profundidade é a distância a que a descontinuidade se estende para o material a partir da superfície de corte. Todos os reparos soldados devem ser feitos em conformidade com esse código. Remoção da descontinuidade pode ser feita de qualquer superfície do metal base. O comprimento agregado de soldagem não deve exceder 20% do comprimento da superfície de placa sendo reparada exceto com aprovação do Engenheiro. 5.15.1.1 Critérios de Aceitação. Para descontinuidades maiores que 1 in [25 mm] em comprimento e profundidade descobertas em superfícies cortadas, os seguintes procedimentos devem ser observados: (1) Quando descontinuidades como W, X, ou Y na Figura 5.1 são observadas antes de completar a junta, o tamanho e forma da descontinuidade deve ser determinado por UT. A área da descontinuidade deve ser determinada como a área de perda total de reflexão traseira, quando testada em conformidade com o procedimento de A 435, Specfication for Straight Beam Ultrasonic Examination of Steel Plates, da ASTM. (2) Para aceitação das descontinuidades W, X, ou Y, a área da descontinuidade (ou a área agregada de descontinuidades múltiplas) não deve exceder 4% da área de material de corte (comprimento vezes largura) com a seguinte exceção: se o comprimento da descontinuidade, ou a largura agregada de descontinuidades em qualquer seção transversal, medida perpendicularmente ao comprimento material do corte, excede 20% da largura do material de corte, a área de material de corte de 4% deve ser reduzida pela porcentagem da porção da largura que excede 20%. (Por exemplo, se uma descontinuidade é 30% da largura material de corte, a área de descontinuidade não pode exceder 3,6% da área material de corte.) A descontinuidade na superfície de corte do material de corte deve ser removida a uma profundidade de 1 in [25 mm] além de sua intersecção com a superfície por cinzelamento, goivagem ou retificação, e bloqueada por soldagem com um processo de baixo hidrogênio em camadas que não exceda 1/8 in [3 mm] em espessura pelo menos para as quatro primeiras camadas. (3) Reparo não deve ser requerido se uma descontinuidade Z, que não exceda a área permissível em 5.15.1.1(2) for descoberta após a junta ter sido completada e for determinado que ela está 1 in [25 mm] ou mais distante da face da solda, como medido na superfície de corte do metal base. Se a descontinuidade Z está a menos de 1 in [25 mm] de distância da face da solda, ela deve ser removida para uma distância de 1 in [25 mm] da zona de fusão da solda por cinzelamento, goivagem ou retificação. Ela deve ser bloqueada por soldagem com m processo de baixo hidrogênio em camadas que não excedam 1/8 in [3 mm] em espessura pelo menos para as quatro primeiras camadas. (4) Se a área da descontinuidade W, X, Y, ou Z excede o permissível em 5.15.1.1(2), o material ou
  • 220.
    AWS D1.1/D1.1M:2010 5.FABRICAÇÃO 200 subcomponente de corte deve ser rejeitado e substituído, ou reparado a critério do Engenheiro. 5.15.1.2 Reparo. No reparo e determinação de limites de descontinuidades produzidas na fábrica, visualmente observadas em superfícies de corte, a quantidade de metal removido deve ser a mínima necessária para remover a descontinuidade ou para determinar que os limites da Tabela 5.4 não sejam excedidos. No entanto, se for requerido reparo de solda, metal base suficiente deve ser removido para fornecer acesso à soldagem. Superfícies de corte podem existir em qualquer ângulo com respeito à direção de laminação. Todos os reparos soldados de descontinuidades devem ser feitos por: (1) Preparação adequada da área de reparo (2) Soldagem com um processo de baixo hidrogênio aprovado e observando as provisões aplicáveis deste código (3) Retificação da solda completa até ficar lisa e nivelada (ver 5.24.3.1) com a superfície adjacente para produzir um acabamento que pareça feito à mão. OBSERVAÇÃO: Os requisitos de 5.15.1.2 podem não ser adequados em caso de carga de tensão aplicada através da espessura do material. 5.15.2 Preparação da Junta. Usinagem, corte térmico, goivagem (inclusive goivagem e corte de arco de plasma), cinzelamento, ou retificação podem ser usados para a preparação da junta, ou remoção de trabalho ou metal inaceitável, exceto que goivagem por oxigênio não deve ser usada em aços que são encomendados como resfriados e temperados ou normalizados. 5.15.3 Ajuste de Material. Para estruturas ciclicamente carregadas, material mais grosso que o especificado na lista a seguir deve ser ajustado se e conforme requerido para produzir uma aresta de soldagem satisfatória sempre que uma solda é feita para carregar tensão calculada: (1) M aterial de cisalhamento mais espesso que 1/2 in [12 mm] (2) Arestas laminadas de placas (que não placas de fábrica universais) mais espessas que 3/8 in [10 mm] (3) Extremidades de ângulos ou formas laminadas (que não seções largas de flange) mais espessas que 5/8 in [16 mm] (4) Placas de fábrica universais ou arestas de flanges de seções largas de flange mais espessas que 1 in [25 mm] (5) A preparação para juntas de topo deve estar em conformidade com os requisitos dos desenhos de detalhe 5.15.4 Processos de Corte Térmico. Processos de goivagem e corte de arco elétrico (inclusive goivagem e corte de arco de plasma) e processos de corte a gás são reconhecidos sob este código para uso na preparação, corte ou ajuste de materiais. O uso desses processos deve estar em conformidade com os requisitos aplicáveis da Cláusula 5. 5.15.4.1 Outros Processos. Outros processos de corte térmico e goivagem podem ser usados sob este código, contanto que o Empreiteiro demonstre ao Engenheiro a habilidade de usar o processo com sucesso. 5.15.4.2 Precisão do Perfil. Aço e metal de solda podem ser cortados termicamente, contanto que seja assegurada uma superfície lisa e regular, livre de trincas e entalhes, e contanto que um perfil preciso seja assegurado pelo uso de um guia mecânico. Para estruturas ciclicamente carregadas, corte térmico de mão livre deve ser feito apenas quando aprovado pelo Engenheiro. 5.15.4.3 Requisitos de Rugosidade. Em corte térmico, o equipamento deve ser ajustado e manipulado de tal forma a evitar corte além (dentro) das linhas prescritas. O padrão de referência para avaliação de superfícies de corte deve ser o calibrador de rugosidade da superfície, inclusive C4.1-77, Criteria for Describing Oxygen-Cut Surfaces and Oxygen Cutting Surface Roughness Gauge, da AWS. A rugosidade de super- fícies cortadas termicamente deve ser avaliada pela comparação visual da superfície de corte com a rugosidade representada no calibrador de rugosidade. A rugosidade da superfície não deve ser maior que a representada pela Amostra 3, exceto que para as extre- midades de membros não sujeitos a tensão calculada, ajustes em vigas com a espessura da flange não excedendo 2 in [50 mm], e para materiais com espe- ssura acima de 4 in a 8 in [100 mm a 200 mm], a rugosidade de superfície não deve exceder aquela re- presentada pela Amostra 2. 5.15.4.4 Limitações de Goivagem ou Entalhe. Rugosidade excedendo esses valores e entalhes ou goivagens que não tenham profundidade maior que 3/16 in [5 mm] em outras superfícies satisfatórias devem ser removidos por usinagem ou retificação. Entalhes ou goivagens com profundidade excedendo 3/16 in [5 mm] podem ser reparados por retificação se a área nominal de seção transversal não for reduzida em mais que 2%. Superfícies retificadas ou usinadas devem progredir para a superfície original com uma inclinação que não exceda um em dez. Superfícies de corte e arestas adjacentes devem ser deixadas livres de escória. Em superfícies de corte térmico, entalhes ou goivagens ocasionais podem, com aprovação do Engenheiro, ser reparados por soldagem. 5.16 Cantos Reentrantes Cantos reentrantes de material de corte devem ser formados para fornecer uma transição gradual com um raio de não menos que 1 in [25 mm], exceto canos em material de conexão e ajustes de viga. Superfícies adjacentes devem atender sem compensação ou corte além do ponto de tangência. Os cantos reentrantes podem ser formados por corte térmico, seguido por
  • 221.
    AWS D1.1/D1.1M:2010 5.FABRICAÇÃO 201 retificação, se necessário, em conformidade com os requisitos de superfície de 5.15.4.3. 5.17 Orifícios de Acesso de Solda, Ajustes de Viga, e Material de Conexão Orifícios de acesso de solda, ajustes de viga e superfícies de corte em materiais de conexão devem ser livres de entalhes. Ajustes de viga e superfícies de corte em materiais de conexão devem estar livres de cantos reentrantes agudos. Orifícios de acesso de solda devem fornecer uma transição suave que não corta além dos pontos de tangência entre superfícies adjacentes e devem atender os requisitos de superfície de 5.15.4.3. 5.17.1 Dimensões de Orifício de Acesso da Solda. Todos os orifícios de acesso da solda devem ter um comprimento a partir da preparação da aresta de junta de solda na superfície interior não menor que 1-1/2 vezes a espessura do material no qual o orifício é feito. A altura mínima do orifício de acesso deve ser a espessura do material com o orifício de acesso (tw) mas não menos que 3/4 in [19 mm], e a altura não precisa exceder 2 in [50 mm]. O orifício de acesso deve ser detalhado para fornecer espaço para reforço de solda conforme necessário e fornecer acesso adequado para soldagem. 5.17.1.1 Orifícios de Acesso de Solda em Seções Laminadas. A aresta da braçadeira deve ser inclinada ou curva a partir da superfície da flange para a superfície reentrante do orifício de acesso. Nenhum ângulo do orifício de acesso da solda deve ter um raio menor que 3/8 in [9 mm]. 5.17.1.2 Orifícios de Acesso de Solda em Seções Construídas. Para seções construídas em que o orifício de acesso de solda é feito depois que a seção foi soldada, a aresta da braçadeira deve ser inclinada ou curva a partir da superfície da flange para a superfície reentrante do orifício de acesso. Nenhum ângulo do orifício de acesso de solda deve ter um raio menor que 3/8 in [9 mm]. Para seções construídas em que o orifício de acesso é feito antes que a seção seja soldada, o orifício de acesso pode terminar perpendicular à flange, contanto que a solda seja terminada a uma distância pelo menos igual ao tamanho da solda distante do orifício de acesso. Soldas de filete não devem ser retornadas através do orifício de acesso (ver Figura 5.2). 5.17.2 Formas Galvanizadas. Orifícios de acesso de solda e ajustes de viga em formas que serão galvanizadas devem ser retificados a metal brilhante. Se a porção de transição curva dos orifícios de acesso de solda e ajustes de viga é formada por orifícios pré- perfurados ou serrados, essa porção do orifício de acesso ou ajuste não precisa ser retificada. 5.17.3 Formas Pesadas. Para formas laminadas com uma espessura de flange que exceda 2 in [50 mm], e seções soldadas com uma espessura de placa que exceda 2 in [50 mm] nas quais a superfície curva do orifício de acesso é cortada termicamente, um pré-aquecimento mínimo de 150°F [66°C] estendo-se 3 in [75 mm] da área em que a curva será cortada deve ser aplicado antes do corte térmico. Para seções pesadas, as superfícies termicamente cortadas de ajustes de viga e orifícios de acesso de solda devem ser retificados a metal brilhante e inspecionados por métodos MT ou PT antes da deposição de soldas de emenda. Orifícios de acesso de solda e ajustes de viga em outras formas não precisam ser retificados ou inspecionados por métodos PT ou MT. 5.18 Soldas Provisórias e Soldas para Auxiliar a Construção 5.18.1 Requisitos de Gerais (1) Soldas provisórias e soldas para auxiliar a construção devem ser feitas com uma WPS qualificada ou pré-qualificada e por pessoal qualificado. (2) Soldas provisórias que não estão incorporadas em soldas finais e soldas para auxiliar a construção que não são removidas devem atender aos requisitos de inspeção visual antes que um membro seja aceito. 5.18.2 Exclusões. Soldas provisórias e soldas para auxiliar a construção são permitidas exceto quando: (1) Em zonas de tensão de estruturas ciclicamente carregadas, não deve haver soldas provisórias não incorporadas à solda final exceto como permitido por 2.16.2, nem soldas de auxílio à construção. Locais que estejam a mais de 1/6 da profundidade da braçadeira de flanges de tensão de vigas ou traves são considerados fora da zona de tensão. (2) Em membros feitos de aço resfriado e temperado com limite de escoamento específico maior que 70 ksi [485 MPa], soldas provisórias fora da solda final e soldas de auxílio à construção devem requerer aprovação de Engenheiro. 5.18.3 Remoção. Em locais outros que 5.18.2, soldas provisórias e soldas de auxílio à construção não incorporadas a soldas finais devem ser removidas quando requerido pelo Engenheiro. 5.18.4 Requisitos Adicionais de Solda Provisória (1) Soldas provisórias incorporadas a soldas finais devem ser feitas com eletrodos que atendam aos requisitos das soldas finais. Essas soldas devem ser limpas antes da incorporação. (2) Soldas provisórias de passe múltiplo devem ter extremidades cascateadas ou ser de outra forma preparadas para incorporação à solda final. (3) Soldas provisórias incorporadas a soldas finais que sejam qualificadas com tenacidade ao entalhe, ou que seja requerido que sejam feitas com metal de adição classificado com tenacidade ao entalhe, devem ser feitas com metais de adição compatíveis.
  • 222.
    AWS D1.1/D1.1M:2010 5.FABRICAÇÃO 202 5.18.5 Requisitos Adicionais para Soldas Provisórias Incorporadas a Soldas SAW. O seguinte deve aplicar-se em acréscimo aos requisitos de 5.18.4. (1) Pré-aquecimento não é requerido para soldas provisórias de passe único refundidas para soldas SAW contínuas. Isso é uma exceção aos requisitos de qualificação de 5.18.1. (2) Soldas provisórias de f ilete não devem exceder 3/8 in [10 mm] e não devem produzir alterações objetáveis na aparência da superfície da solda. (3) Soldas provisórias nas raízes de juntas que requeiram penetração de raiz específica não devem resultar em penetração diminuída. (4) Soldas provisórias que não estejam em conformidade com os requisitos de (2) e (3) devem ser removidas ou reduzidas em tamanho por quaisquer meios adequados antes da soldagem. (5) Soldas provisórias na raiz de uma junta com reforço de aço com espessura menor que 5/16 in [8 mm] devem ser removidas ou tornar-se contínuas para todo o comprimento da junta usando SMAW com eletrodos de baixo hidrogênio, GMAW, ou FCAW-G. 5.19 Abaulamento em Membros Construídos 5.19.1 Abaulamento. Arestas de viga construída e braçadeiras de trave devem ser cortadas para o abaulamento prescrito com compensação adequada para retração devida a corte e soldagem. No entanto, a variação moderada da tolerância de abaulamento especificada pode ser corrigida por uma cuidadosa aplicação de calor. 5.19.2 Correção. Correções de erros em abaulamento de aço resfriado e temperado devem requerer a aprovação do Engenheiro. 5.20 Emendas em Estruturas Ciclicamente Carregadas Emendas entre seções de vigas laminadas ou traves construídas devem ser feitas preferivelmente em um plano único transversal. Emendas de oficina de braçadeiras e flanges em traves construídas, feitas antes que as braçadeiras e flanges sejam anexadas uma à outra, podem estar localizadas em um plano único transversal ou múltiplos planos transversais, mas as provisões de especificações gerais de tensão de fadiga devem aplicar-se. 5.21 Controle de Distorção e Retração 5.21.1 Procedimento e Sequência. Ao montar e juntar partes de uma estrutura ou de membros construídos, e ao soldar partes de reforço a membros, o procedimento e sequência devem ser tais que irão minimizar distorção e retração. 5.21.2 Sequenciamento. Tanto quanto praticável, todas as soldas devem ser feitas em uma sequência que irá equilibrar o calor aplicado de soldagem enquanto a soldagem progride. 5.21.3 Responsabilidade do Empreiteiro. Em membros ou estruturas em que distorção ou retração excessivas poderiam ser esperadas, o Empreiteiro deve preparar uma sequência de soldagem por escrito para aquele membro ou estrutura que atenda aos requisitos de qualidade especificados. A sequência de soldagem e programa de controle de distorção devem ser submetidos ao Engenheiro, para informação e comentário, antes do início da soldagem no membro ou estrutura no qual é provável que a retração ou distorção afete a adequação do membro ou estrutura. 5.21.4 Progressão de Solda. A direção da progressão geral em soldagem em um membro deve ser a partir de pontos em que as partes estão relativamente fixas em posição com respeito uma à outra em direção a pontos tendo uma liberdade relativa maior de movimento. 5.21.5 Retenção Minimizada. Em montagens, juntas das quais se espera retração significante deveriam normalmente ser soldadas antes das juntas das quais se espera menos retração. Elas também deveriam ser soldada com o mínimo possível de retenção. 5.21.6 E m e n d a s d e Submontagem. Todas as emendas de oficina soldadas em cada parte de componente de uma viga de um membro construído ou coberto devem ser feitas antes que a parte do componente seja soldado a outras partes de componente do membro. Traves longas ou seções de traves podem ser feitas pela soldagem de submontagens, cada uma em conformidade com 5.21.6. Quando fazendo essas emendas de submontagem, seja na oficina ou em campo, a sequência de soldagem deveria ser razoavelmente equilibrada entre as soldas de braçadeira e flange assim como entre os eixos maiores e menores do membro. 5.21.7 L i mi t a ç õ e s d e Temperatura. Ao fazer soldas sob condições externas severas de retenção de retração, uma vez que a soldagem tenha iniciado, não deve ser permitido que a junta resfrie abaixo do pré- aquecimento mínimo especificado até que a junta esteja completa, ou solda suficiente tenha sido depositada para assegurar que não haja trincas. 5.22 Tolerância de Dimensões de Juntas 5.22.1 Montagem de Solda de Filete. As partes a serem anexadas por soldas de filete devem ser posicionadas em contato tão próximo quanto possível. A abertura de raiz não deve exceder 3/16 in [5 mm], exceto em casos envolvendo formas ou placas com espessura de 3 in [75 mm] ou maior se, após endireitamento e na montagem, a abertura de raiz não
  • 223.
    AWS D1.1/D1.1M:2010 5.FABRICAÇÃO 203 pode ser suficientemente fechada para atender a essa tolerância. Em tais casos, uma abertura de raiz máxima de 5/16 in [8 mm] pode ser usada, contanto que um reforço adequado seja usado. O reforço pode ser de fluxo, fita de vidro, pó de ferro ou materiais similares, ou soldas usando um processo de baixo hidrogênio compatível com o metal de adição depositado. Se a separação for maior que 1/16 in [2 mm], as pernas da solda de filete devem ser aumentadas pela quantia de abertura de raiz, ou o Empreiteiro deve demonstrar que a garganta efetiva requerida foi obtida. 5.22.1.1 Superfície de Contato. A separação entre superfícies de contato de soldas de tampão, e de juntas de topo assentadas em um reforço, não deve exceder 1/16 in [2 mm]. Quando irregularidades em formas laminadas ocorrem depois do endireitamento não permitir contato dentro dos limites acima, o procedimento necessário para trazer o material para dentro desses limites deve estar sujeito à aprovação do Engenheiro. O uso de placas de enchimento deve ser proibido exceto quando especificado nos desenhos ou especialmente aprovado pelo Engenheiro e feito em conformidade com 2.13. 5.22.2 Montagem de Solda em Chanfro PJP. As partes a serem anexadas por soldas em chanfro PJP paralelas ao comprimento do membro devem ser situadas em contato tão próximo quanto possível. A abertura de raiz entre as partes n ã o d eve exceder 3/16 in [5 mm] exceto em casos que envolvem placas ou formas laminadas de espessura de 3 in [75 mm] ou maior se, após endireitamento e na montagem, a abertura de raiz não pode ser suficientemente fechada para atender essa tolerância. Em tais casos, uma abertura máxima de raiz de 5/16 in [8 mm] pode ser usada, contanto que reforço adequado seja usado e a solda final atenda os requisitos para tamanho de solda. Tolerâncias para juntas de rolamento devem estar em conformidade com as especificações de contrato aplicáveis. 5.22.3 Alinhamento de Junta de Topo. Partes a serem anexadas a juntas de topo devem ser cuidadosamente alinhadas. Quando as partes são efetivamente restringidas quanto à flexão devida à excentricidade em alinhamento, a compensação do alinhamento teórico não deve exceder 10% da espessura da parte mais fina anexada, ou 1/8 in [3 mm], o que for menor. Ao corrigir desalinhamentos em tais casos, as partes não devem ser levadas a uma inclinação maior que 1/2 in [12 mm] em 12 in [300 mm]. Medidas de compensação devem ser baseadas na linha de centro de partes, a menos que mostrado de outra forma nos desenhos. 5.22.3.1 Alinhamento de Solda Periférico (Tubular). Ao encostar partes a serem anexadas por soldas periféricas, elas devem estar cuidadosamente alinhadas. Duas soldas periféricas não devem estar localizadas mais perto que um diâmetro de cano ou 3 pés [1 m], o que for menor. Não deve haver mais que duas soldas periféricas em qualquer intervalo de cano de 10 pés [3 m], exceto quando assim acordado pelo Proprietário e Empreiteiro. A compensação radial de arestas encostadas de costuras periféricas não deve exceder 0,2t (onde t é a espessura do membro mais fino) e o máximo permissível deve ser 1/4 in [6 mm], contanto que qualquer compensação que exceda 1/8 in [3 mm] seja soldada a partir de ambos os lados. No entanto, com a aprovação do Engenheiro, uma área localizada por costura periférica pode ser compensada até 0,3t com um máximo de 3/8 in [10 mm], contanto que a área localizada esteja abaixo de 8t em comprimento. Metal de adição deve ser acrescentado a essa região para fornecer uma transição 4 para 1 e pode ser acrescentado em conjunção com a feitura da solda. Compensações que excedam isso devem ser corrigidas como fornecido em 5.22.3. Costuras de solda longitudinais de seções adjacentes devem ser escalonadas um mínimo de 90°, a menos que espaçamento mais próximo seja concordado pelo Proprietário e construtor. 5.22.4 Dimensões de Chanfro 5.22.4.1 Variações em Seções Transversais Não Tubulares. Com a exclusão de ESW e EGW, e com a exceção de 5.22.4.3 para aberturas de raiz que excedam aquelas permitidas na Figura 5.3, as dimensões de seção transversal das juntas soldadas em chanfro que variam daquelas mostradas nos desenhos de detalhe por mais que essas tolerâncias devem ser submetidas à consulta do Engenheiro para aprovação ou correção. 5.22.4.2 Variações em Seções Transversais Tubulares. Variação em dimensões de seção transversal de juntas soldadas em chanfro, com relação àquelas mostradas em desenhos detalhados, devem estar em conformidade com 5.22.4.1, exceto (1) Tolerâncias para conexões em T-, Y-, e K- estão inclusas nas faixas dadas em 3.13.5. (2) As tolerâncias mostradas na Tabela 5.5 aplicam-se a soldas em chanfro CJP tubulares em juntas de topo, feitas a partir de apenas um lado, sem reforço. 5.22.4.3 Correção. Aberturas de raiz maiores que aquelas permitidas em 5.22.4.1, mas não maiores que duas vezes a espessura da parte mais fina ou 3/4 in [20 mm], o que for menor, podem ser corrigidas por soldagem a dimensões aceitáveis antes de anexar as partes por soldagem. 5.22.4.4 Aprovação do Engenheiro. Aberturas de raiz maiores que as permitidas por 5.22.4.3 podem ser corrigidas por soldagem apenas com a aprovação do Engenheiro. 5.22.5 Chanfros Goivados. Chanfros produzidos por goivagem devem estar em conformidade substancial com as dimensões de perfil de chanfro especificadas na Figura 3.3 e 3.4, e provisões de 3.12.3 e 3.13.1. Acesso adequado à raiz deve ser mantido. 5.22.6 Métodos de Alinhamento. Membros a serem soldados devem ser colocados no alinhamento correto e mantidos em posição por parafusos, grampos, cunhas, cabos de ancoragem, escoras e outros dispositivos adequados, ou por soldas provisórias até que a soldagem esteja completa. O uso de separadores e
  • 224.
    AWS D1.1/D1.1M:2010 5.FABRICAÇÃO 204 suportes é recomendado quando praticável. Compensações adequadas devem ser feitas para deformação e retração. 5.23 Tolerância Dimensional de Membros Estruturais Solda- dos As dimensões de membros estruturais soldados deve estar em conformidade com as tolerâncias de (1) as especificações gerais regulando o trabalho, e (2) as tolerâncias dimensionais especiais em 5.23.1 a 5.23.12. (Observe que uma coluna tubular é interpretada como um membro de compressão tubular.) 5.23.1 Linearidade de Colunas e Estruturas. Para colunas e membros estruturais primários soldados, a despeito de seção transversal, a variação máxima em linearidade deve ser Comprimentos de menos de 30 pés [9 m]: 1 mm × Nº de metros do comprimento total Comprimentos de 30 pés [9 m] a 45 pés [15 m] = 3/8 in [10 mm] Comprimentos acima de 45 pés [15 m]: 5.23.2 Linearidade de Viga e Trave (Sem Abaulamento Especificado). Para vigas ou traves soldadas, a despeito de seção transversal, onde não há abaulamento especificado, a variação máxima de linearidade deve ser 1 mm × Nº de metros do comprimento total 5.23.3 Abaulamento de Viga e Trave (Trave Típica). Para vigas ou traves soldadas cuja flange de topo não esteja embutida em concreto sem uma mísula de concreto projetada, a despeito de seção transversal, a variação máxima de abaulamento requerido na montagem da oficina (para orifícios de perfuração para emendas de campo ou preparando emendas de campo soldadas) deve ser Em meio vão, –0, +1-1/2 in [40 mm] para intervalos ≥ pés [30 m] –0, + 3/4 in [20 mm] para intervalos < 100 pés [30 m] em suportes, 0 para suportes de extremidade ± 1/8 [3 mm] para suportes interiores Em pontos intermediários, -0, ( ) ( ) onde a = distância em pés (metros) do ponto de inspeção ao suporte mais próximo S = comprimento do intervalo em pés (metros) b = 1- /2 in 4 mm para intervalos ≥ pés [30 m] b = 3/4 in [20 mm] para intervalos < 100 pés [30 m] 5.23.4 Abaulamento de Viga e Trave (sem Mísula de Concreto Projetada). Para membros cuja flange de topo está embutida em concreto sem uma mísula de concreto projetada, a variação máxima de abaulamento requerido na montagem de oficina (para orifícios de perfuração para emendas de campo ou preparando emendas de campo soldadas) deve ser a meio vão, ± 3/4 in [20 mm] para intervalos ≥ 100 pés [30 m] ± 3/8 in [10 mm] para intervalos < 100 pés [30 m] em suportes, 0 para suportes de extremidade ± 1/8 in [3 mm] para suportes interiores Em pontos intermediários, ( ) ( ) onde a e S são como definido acima b = 3/4 in [20 mm] para intervalos ≥ 100 pés [30 m] b = 3/8 in [10 mm] para intervalos < 100 pés [30 m] Ver Tabela 5.7 para valores tabulados. A despeito de como o abaulamento é mostrado nos desenhos de detalhe, a convenção de sinal para a variação permissível é mais (+) acima e menos (–) abaixo da forma de abaulamento detalhada. Essas provisões também se aplicam a um membro individual quando não são requeridas emendas de campo ou montagem de oficina. Medidas de abaulamento devem ser feitas na condição sem carga. 5.23.5 Varredura de Viga e Trave. A variação máxima de linearidade ou varredura específica no ponto médio deve ser 1 mm × No. de metros do comprimento total Contanto que o membro tenha flexibilidade lateral suficiente para permitir que sejam anexados diafragmas, armações transversais, apoio lateral, etc., sem danificar o membro estrutural ou seus anexos. 5.23.6 Variação em Aplainamento de Braçadeira 5.23.6.1 Medidas. Variações de aplainamento de braçadeiras de trave devem ser determinadas através da medida da compensação da linha de centro real da braçadeira à aresta reta cujo comprimento é maior que
  • 225.
    AWS D1.1/D1.1M:2010 5.FABRICAÇÃO 205 a menor dimensão do painel e colocada em um plano paralelo ao plano nominal da braçadeira. As medidas devem ser tomadas antes da ereção (ver Comentário). 5.23.6.2 Estruturas Não Tubulares Estaticamente Carregadas. Variações de aplainamento de braçadeiras que tenham uma profundidade, D, uma espessura, t, em painéis presos por reforços ou flanges, ou ambos, cuja menor dimensão de painel é d não devem exceder o seguinte: Reforços intermediários em ambos os lados da braçadeira onde D/t < 150, variação máxima = d/100 onde D/t ≥ 150, variação máxima = d/80 Reforços intermediários em apenas um lado da braçadeira onde D/t < 100, variação máxima = d/100 onde D/t ≥ 100, variação máxima = d/67 Sem reforços intermediários onde D/t ≥ 100, variação máxima = D/150 (Ver Anexo D para tabulação.) 5.23.6.3 Estruturas Não Tubulares Ciclicamente Carregadas. Variação de aplainamento de braçadeiras que tenham uma profundidade, D, e uma espessura, t, em painéis presos por reforços ou flanges, ou ambos, cuja menor dimensão de painel é d não deve exceder o seguinte: Reforços intermediários em ambos os lados da braçadeira Traves interiores— onde D/t < 150—variação máxima = d/115 onde D/t ≥ 150—variação máxima = d/92 Traves Frontais— onde D/t < 150—variação máxima = d/130 onde D/t ≥ 150—variação máxima = d/105 Reforços intermediários em apenas um lado da braçadeira Traves interiores— onde D/t < 100—variação máxima = d/100 onde D/t ≥ 100—variação máxima = d/67 Traves Frontais— onde D/t < 100— variação máxima= d/120 onde D/t ≥ 100—variação máxima = d/80 Sem reforços intermediários—variação máxima = D/150 (Ver Anexo E para tabulação.) 5.23.6.4 Distorção Excessiva. Distorções de braçadeira de duas vezes as tolerâncias permissíveis de 5.23.6.2 ou 5.23.6.3 devem ser satisfatórias quando ocorrem na extremidade de uma trave que tenha sido perfurada, ou subperfurada e alargada; ou durante a montagem, ou para uma amostra para uma emenda de campo parafusada; contanto que, quando as placas de emenda são parafusadas, a braçadeira assuma as tolerâncias de dimensão apropriadas. 5.23.6.5 Consideração Arquitetônica. Se considerações arquitetônicas requerem tolerâncias mais restritivas que as descritas em 5.23.6.2 ou 5.23.6.3, referência específica deve ser incluída nos documentos de proposta. 5.23.7 Variação Entre Linhas de Centro de Flange e Braçadeiras. Para membros H ou I construídos, a variação máxima entre a linha de centro da braçadeira e a linha de centro da flange na superfície de contato não deve exceder 1/4 in [6 mm]. 5.23.8 Deformação e Inclinação da Flange. Para vigas ou traves soldadas, a deformação e inclinação combinadas da flange devem ser determinadas pela medida da compensação na extremidade da flange a partir de uma linha normal ao plano da braçadeira através da intersecção da linha de centro da braçadeira com a superfície externa da placa de flange. Essa compensação não deve exceder 1% da largura total da flange ou 1/4 in [6 mm], o que for maior, exceto que juntas de topo soldadas de partes adjacentes devem preencher os requisitos de 5.22.3. 5.23.9 Variação de Profundidade. Para vigas e traves soldadas, a variação máxima permissível de profundidade específica medida na linha de centro da braçadeira deve ser Para profundidades até 36 in [1 m] incl. ± 1/8 in [3 mm] Para profundidades acima de 36 in [1 m] até 72 in [2 m] incl. ± 3/16 in [5 mm] Para profundidades acima de 72 in [2 m] + 5/16 in [8 mm] – 3/16 in [5 mm] 5.23.10 Rolamento em Pontos de Carga. As extremidades de rolamento de reforços de rolamento devem estar em ângulo reto com a braçadeira e devem ter pelo menos 75% da área de seção transversal do rolamento de reforço em contato com a superfície interna das flanges. A superfície externa das flanges quando rolamento contra uma base ou assento de aço deve ajustar-se em 0,010 in [0,25 mm] para 75% da área projetada da braçadeira e reforços, e não mais que 1/32 in [1 mm] para os 25% remanescentes da área projetada. Traves sem reforços devem suportar na área projetada da braçadeira na superfície externa da flange em 0,010 in [0,25 mm] e o ângulo incluído entre braçadeira e flange não deve exceder 90° no comprimento do rolamento (ver Comentário). 5.23.11 Tolerância em Reforços 5.23.11.1 Ajuste de Reforços Intermediários. Quando um ajuste justo de reforços intermediários é especificado, ele deve ser definido como permitindo uma folga de até 1/16 in [2 mm] entre reforço e flange. 5.23.11.2 Linearidade de Reforços Interme- diários. A variação fora de linearidade de reforços intermediários não deve exceder 1/2 in [12 mm] para traves com profundidade de até 6 pés [1,8 m], e 3/4 in [20 mm] para traves com profundidade acima de 6 pés [1,8 m], com a devida consideração para membros que se encaixam nelas.
  • 226.
    AWS D1.1/D1.1M:2010 5.FABRICAÇÃO 206 5.23.11.3 Linearidade e Local de Reforços de Rolamento. A variação fora de linearidade de reforços de rolamento não deve exceder 1/4 in [6 mm] para profundidade até 6 p é s [1,8 m] ou 1/2 in [12 mm] para profundidade acima de 6 pés [1,8 m]. A linha de centro real do reforço deve ficar dentro da espessura do reforço como medido a partir do local da linha de centro teórica. 5.23.12 Outras Tolerâncias Dimensionais. Torção de membros de caixa e outras tolerâncias dimensionais de membros não abordadas por 5.23 devem ser individualmente determinados e concordados mutuamente pelo Empreiteiro e pelo Proprietário com a consideração apropriada pelos requisitos de ereção. 5.24 Perfis de Solda Todas as soldas devem atender os critérios de aceitação da Tabela 6.1 e devem estar livres de trincas, sobreposições e descontinuidades de perfil inaceitáveis exibidas na Figura 5.4, Tabela 5.9 e Tabela 5.10, exceto quando permitido de outra forma em 5.24.1, 5.24.2, e 5.24.3. 5.24.1 Soldas de Filete. As faces de soldas de filete podem ser levemente convexas, planas ou levemente côncavas como mostrado na Figura 5.4 e como permitido pela Tabela 6.1. 5.24.2 Exceção para Soldas de Filete Descontínuas. Exceto para mordedura, como permitido pelo código, os requisitos de perfil da Figura 5.4 não devem aplicar- se às extremidades de soldas de filete descontínuas fora de seu tamanho efetivo. 5.24.3 Soldas em Chanfro. Reforço de soldas em chanfro deve estar em conformidade com a Tabela 5.9, Tabela 5.10 e com as provisões abaixo. Soldas devem ter uma transição gradual para o plano das superfícies do metal base. 5.24.3.1 Superfícies Jateadas. Soldas que requerem jateamento devem ser acabadas de forma a não reduzir a espessura do metal base ou metal de solda mais fino em mais que 1/32 in [1 mm]. Reforço remanescente não deve exceder 1/32 in [1 mm] em altura e deve misturar-se suavemente nas superfícies do metal base com áreas de transição livres de mordedura. No entanto, todo reforço deve ser removido quando a solda forma parte de uma superfície de contato. 5.24.3.2 Métodos e Valores de Acabamento. Quando acabamento de superfície é requerido, valores de rugosidade (ver ASME B46.1) não devem exceder 250 micropolegadas [6,3 micrometros]. Cinzelamento e goivagem podem ser usados contanto que sejam seguidos por retificação ou usinagem. Para estruturas ciclicamente carregadas, o acabamento deve ser paralelo à direção de tensão primária, exceto rugosidade final de 125 micropolegadas [3,2 micrometros] ou menos podem ser acabados em qualquer direção. 5.24.4 Barras de Prateleira. Barras de prateleira devem estar em conformidade com os requisitos de 5.10.1 a 5.10.5. Barras de prateleira podem ser deixadas no lugar apenas para membros estaticamente carregados. 5.25 Técnica para Soldas de Tampão (Plug e Slot) 5.25.1 Soldas de Tampão (Plug). A técnica usada para fazer soldas de tampão (plug) quando usando processos SMAW, GMAW (exceto GMAW-S), e FCAW deve ser como segue: 5.25.1.1 Posição Plana. Para soldas a serem feitas na posição plana, cada passe deve ser depositado ao redor da raiz da junta e então depositado ao longo de um caminho espiral para o centro do orifício, fundindo e depositando uma camada de metal de solda na raiz e topo da junta. O arco deve então ser movido para a periferia do orifício e o procedimento repetido, fundindo e depositando camadas sucessivas para preencher o orifício até a profundidade requerida. A escória cobrindo o metal de solda deveria ser mantida fundida até que a solda esteja acabada. Se o arco está quebrado ou é permitido que a escória resfrie, a escória precisa ser completamente removida antes de reiniciar a solda. 5.25.1.2 Posição Vertical. Para soldas a serem feitas na posição vertical, o arco é iniciado na raiz da junta no lado mais baixo do orifício e é levado acima, fundindo-se com a face da placa interior e ao lado do orifício. O arco é interrompido no topo do orifício, a escória é limpa e o processo é repetido no lado oposto do orifício. Depois de limpar a escória da solda, outras camadas deveriam ser depositadas de forma similar para preencher o orifício até a profundidade requerida. 5.25.1.3 Posição Suspensa. Para soldas a serem feitas na posição suspensa, o procedimento é o mesmo que para a posição plana, exceto que deveria ser permitido que a escória resfrie e deveria ser completamente removida após depositar cada esfera sucessiva até que o orifício esteja preenchido até a profundidade requerida. 5.25.2 Soldas de Tampão (Slot). Soldas de tampão (slot) devem ser feitas usando técnicas similares àquelas especificadas em 5.25.1 para soldas de tampão (plug), exceto que se o comprimento da ranhura excede três vezes a largura, ou se a ranhura estende-se à aresta da parte, os requisitos técnicos de 5.25.1.3 devem aplicar- se. 5.26 Reparos A remoção de metal de solda ou porções do metal base pode ser feita por usinagem, retificação, cinzelamento ou goivagem. Ela deve ser feita de tal forma que o metal de solda ou metal base adjacente não seja entalhado ou goivado. Goivagem por oxigênio não deve ser usada em aço resfriado ou temperado. Porções inaceitáveis da solda devem ser removidas sem remoção substancial d o m e t a l base.
  • 227.
    AWS D1.1/D1.1M:2010 5.FABRICAÇÃO 207 As superfícies devem ser completamente limpas antes da soldagem. O metal de solda deve ser depositado para compensar qualquer deficiência em tamanho. 5.26.1 Opções do Empreiteiro. O Empreiteiro tem a opção de ou reparar uma solda inaceitável ou remover e substituir a solda toda, exceto como modificado por 5.26.3. A solda reparada ou substituída deve ser retestada pelo método originalmente usado, e os mesmos critérios de aceitação de técnica e qualidade devem ser aplicados. Se o Empreiteiro escolher reparar a solda, ela deve ser corrigida como segue: 5.26.1.1 Sobreposição, Convexidade Excessiva ou Reforço Excessivo. Metal de solda excessivo deve ser removido. 5.26.1.2 Concavidade Excessiva de Solda ou Cratera, Soldas Abaixo do Tamanho, Mordedura. As superfícies devem ser preparadas (ver 5.30) e metal de solda depositado adicional. 5.26.1.3 Fusão Incompleta, Porosidade Excessiva de Solda ou Inclusões de Escória. Porções inaceitáveis devem ser removidas (ver 5.26) e soldadas novamente. 5.26.1.4 Trincas em Metal Base ou de Solda. A extensão da trinca deve ser averiguada pelo uso de ácido macrográfico, MT, PT, ou outros meios igualmente positivos; a espessura e metal estável 2 in [50 mm] além de cada extremidade da trinca devem ser removidos, e soldados novamente. 5.26.2 Limitações Localizadas de Temperatura de Reparo Térmico. Membros distorcidos por soldagem devem ser endireitados por meios mecânicos ou por aplicação de uma quantidade limitada de calor localizado. A temperatura de áreas aquecidas medidas por métodos aprovados não deve exceder 1100°F [600°C] para aço resfriado e temperado, ou 1200°F [650°C] para outros aços. A parte a ser aquecida para endireitamento deve ser substancialmente livre de tensão e de forces externas, exceto aquelas tensões que resultam de método de endireitamento mecânico usado em conjunção com a aplicação de calor. 5.26.3 Aprovação do Engenheiro. Aprovação anterior do Engenheiro deve ser obtida para reparos em metal base (além daqueles requeridos por 5.15), reparo de trincas importantes ou trincas retardadas, reparos para ESW e EGW com defeitos internos, ou para um projeto revisado que compense as deficiências. O Engenheiro deve ser notificado antes que membros soldados sejam cortados e separados. 5.26.4 Inacessibilidade de Soldas Inaceitáveis. Se, após uma solda inaceitável ser feita, é realizado trabalho que torna a solda inacessível ou cria novas condições que tornam a correção da solda inaceitável perigosa ou ineficaz, então as condições originais devem ser restauradas pela remoção das soldas ou membros, ou ambos, antes que as correções sejam feitas. Se isso não for feito, o defeito deve ser compensado por trabalho adicional realizado em conformidade com um projeto revisado aprovado. 5.26.5 Restauração Soldada de Metal Base Metal com Orifícios Deslocados. Exceto quando restauração por soldagem é necessária por razões estruturais ou outras, orifícios deslocados perfurados podem ser deixados abertos ou preenchidos com parafusos. Quando metal base com orifícios deslocados é restaurado por soldagem, os seguintes requisitos se aplicam: (1) Metal base não sujeito a tensão de tração cíclica pode ser restaurado por soldagem, contanto que o Empreiteiro prepare e siga uma WPS de reparo. A estabilidade da solda de reparo deve ser verificada por NDT apropriado, quando tais testes são especificados em documentos de contrato para soldas em chanfro sujeitas a tensão ou compressão. (2) Metal base sujeito a tensão de tração cíclica pode ser restaurado por soldagem contanto que: (a) O Engenheiro aprova reparo por soldagem e o reparo WPS. (b) A WPS de reparo é seguida no trabalho e a estabilidade do metal base restaurado é verificada pelo(s) método(s) NDT especificado(s) nos documentos de contrato para exame de soldas em chanfro de tensão ou como aprovado pelo Engenheiro. (3) Em acréscimo aos requisitos de (1) e (2), quando orifícios em metais base resfriados e temperados são restaurados por soldagem: (a) Meta l d e ad iç ão a propriado, aporte de calor e PWHT (quando PWHT é requerido) devem ser usados. (b) Soldas de amostra devem ser feitas usando a WPS de reparo. (c) RT de soldas de amostra deve verificar que a estabilidade da solda está em conformidade com os requisitos de 6.12.2.1. (d) Um teste de tensão de seção reduzida (metal de solda); dois testes de flexão lateral (metal de solda); e três testes CVN de HAZ (área de grão grosso) removidos de soldas de amostra devem ser usados para demonstrar que propriedades mecânicas da área reparada estejam em conformidade com os requisitos específicos do metal base (ver Cláusula 4, Parte D para requisitos de teste CVN). (4) Superfícies de solda devem ser acabadas como especificado em 5.24.3.1. 5.27 Martelamento Martelamento pode ser usado em camadas de solda intermediárias para controle de tensões de retração em soldas espessas para prevenir trinca ou distorção, ou ambos. Nenhum martelamento deve ser feito na raiz ou camada de superfície da solda ou do metal base metal nas arestas da solda exceto como fornecido em 2.20.6.6(3). Deveria ser tomado cuidado para prevenir sobreposição ou trinca da solda ou metal base. 5.27.1 Ferramentas. O uso de martelos de escória manuais, cinzéis e ferramentas leves de vibração para a
  • 228.
    AWS D1.1/D1.1M:2010 5.FABRICAÇÃO 208 remoção de escória e respingo é permitido e não deve ser considerado martelamento. 5.28 Calafetagem Calafetagem deve ser definida como uma deformação plástica da solda e superfícies de metal base por meios mecânicos para vedar ou obscurecer descontinuidades. Calafetagem deve ser proibida para metais base com limite de escoamento mínimo especificado maior que 50 ksi [345 MPa]. Para metais base com limite de escoamento mínimo específico de 50 ksi [345 MPa] ou menos, calafetagem pode ser usada, contanto que: (1) todas as inspeções tenham sido concluídas e aceitas (2) calafetagem é necessária para prevenir falhas de revestimento (3) a técnica e limitações de calafetagem sejam aprovadas pelo Engenheiro 5.29 Aberturas de Arco Aberturas de arco fora da área de soldas permanentes deveriam ser evitadas em qualquer metal base. Trincas ou imperfeições causadas por aberturas de arco devem ser retificadas a um contorno suave e verificados para assegurar a estabilidade. 5.30 Limpeza de Solda 5.30.1 Limpeza Durante o Processo. Antes de soldar sobre metal previamente depositado, toda escória deve ser removida e a solda e metal base adjacente devem ser limpos por escovação ou outros meios adequados. Esse requisito deve aplicar-se não apenas a camadas sucessivas, mas também a esferas sucessivas e à área de cratera quando a soldagem é recomeçada após qualquer interrupção. Ele não deve, no entanto, restringir a soldagem de soldas de tampão em conformidade com 5.25. 5.30.2 Limpeza de Soldas Terminadas. A escória deve ser removida de todas as soldas finalizadas, e a solda e metal base adjacente devem ser limpos por escovação ou outros meios adequados. Respingos firmemente aderentes que remanesçam após a operação de limpeza são aceitáveis, a menos que sua remoção seja requerida para o propósito de NDT. Juntas soldadas não devem ser pintadas até depois que a soldagem tenha sido finalizada e a solda aceita. 5.31 Guias de Solda (Ver 5.2.2) 5.31.1 Uso de Guias de Solda. Soldas devem ser terminadas na extremidade da junta de uma maneira que irá assegurar boas soldas. Sempre que necessário, isso deve ser feito pelo uso de guias de solda alinhadas de tal forma que forneçam uma extensão da preparação de junta. 5.31.2 Remoção de Guias de Solda para Estruturas Não Tubulares Estaticamente Carregadas. Para estruturas não tubulares estaticamente carregadas, guias de solda não precisam ser removidas a menos que requerido pelo Engenheiro. 5.31.3 Remoção de Guias de Solda para Estruturas Não Tubulares Ciclicamente Carregadas. Para estruturas não tubulares ciclicamente carregadas, guias de solda devem ser removidas após término e resfriamento da solda, e as extremidades da solda devem alisadas e jateadas com as arestas de partes adjacentes. 5.31.4 Extremidades de Juntas de Topo Soldadas. Extremidades de juntas de topo soldadas em que o jateamento é requerido devem ser acabadas de forma a não reduzir a largura além da largura detalhada ou da largura real fornecida, o que for maior, em mais de 1/8 in [3 mm] para não deixar reforço em cada extremidade que exceda 1/8 in [3 mm]. Extremidades de juntas de topo soldadas devem progredir a uma inclinação que não exceda 1 in 10.
  • 229.
    AWS D1.1/D1.1M:2010 5.FABRICAÇÃO 209 Tabela 5.1 Exposição Atmosférica Permissível de Eletrodos de Baixo Hidrogênio (ver 5.3.2.2 e 5.3.2.3) Eletrodo Coluna A Coluna B (horas) A5.1 E70XX 4 máx Acima de 4 to 10 máx E70XXR 9 máx E70XXHZR 9 máx E7018M 9 máx A5.5 E70XX-X 4 máx Acima de 4 a 10 máx E80XX-X 2 máx Acima de 2 a 10 máx E90XX-X 1 máx Acima de 1 a 5 máx E100XX-X 1/2 máx Acima de 1/2 a 4 máx E110XX-X 1/2 máx Acima de 1/2 a 4 máx Notes: 1 Coluna A: Eletrodos expostos à atmosfera por períodos mais longos que os mostrados devem ser secados novamente antes do uso 2 Coluna B: Eletrodos expostos à atmosfera por períodos mais longos que aqueles estabelecidos por teste devem ser secados novamente antes do uso 3 Eletrodos devem ser distribuídos e mantidos em estojos, ou outros contêineres pequenos Contêineres aquecidos não são obrigatórios 4 O designador suplementar opcional, R, designa um eletrodo de baixo hidrogênio que foi testado para conteúdo de umidade no revestimento depois de exposição a um ambiente de umidade por 9 horas e atendeu ao nível máximo permitido em A5 1/A5 1M, Specification for Carbon Steel Electrodes for Shielded Metal Arc Welding, da AWS. Tabela 5.2 Tempo Mínimo de Retenção (ver 5.8.1) 1/4 in [6 mm] ou Menos Acima de 1/4 in [6 mm] Até 2 in [50 mm] Acima de 2 in [50 mm] 15 min 15 min para cada 1/4 in [6 mm] ou fração desta 2 h mais 15 min para cada in [25 mm] adicional ou fração desta acima de 2 in [50 mm] Tabela 5.3 Tratamento Térmico Alternativo de Alívio de Tensão (ver 5.8.2) Decréscimo em Temperatura abaixo da Temperatura Mínima Especificada, Tempo Mínimo de Retenção a Temperaturas Decrescidas, Horas por Polegada [25 mm] de Espessura °F °C 50 100 150 200 30 60 90 120 2 4 10 20 Tabela 5.4 Limites de Aceitabilidade e Reparo de Descontinuidades Laminares em Superfícies Cortadas Produzidas na Fábrica (ver 5.15.1) Descrição da Descontinuidade Reparo Requerido Qualquer descontinuidade de 1 in [25 mm] em comprimento ou menos Nenhum, não precisa ser explorado Qualquer descontinuidade acima de 1 in [25 mm] em comprimento e 1/8 in [3 mm] em profundidade máxima Nenhum, mas a profundidade deveria ser exploradaa Qualquer descontinuidade acima de 1 in [25 mm] em comprimento com profundidade acima de 1/8 in [3 mm] mas não maior que 1/4 in [6 mm[ Remover, não precisa solda Qualquer descontinuidade acima de 1 in [25 mm] em comprimento com profundidade acima de 1/4 in [6 mm] mas não maior que 1 in [25 mm] Remover completamente e soldar Qualquer descontinuidade acima de 1 in [25 mm] em comprimento com profundidade maior que 1 in [25 mm] Ver 5.15.1.1 a Uma verificação focalizada de 10% das descontinuidades na superfície de corte em questão deve ser explorada ao retificar para determinar a profundidade. Se a profundidade de qualquer das descontinuidades exploradas exceder 1/8 in [3 mm], então todas as descontinuidades acima de 1 in [25 mm] de comprimento que permanecerem na superfície de corte devem ser exploradas por retificação para determinar a profundidade. Se nenhuma das descontinuidades explorada na verificação focalizada de 10% tiver uma profundidade que exceda 1/8 in [3 mm], então o restante das descontinuidades nessa superfície de corte não precisa ser explorado.
  • 230.
    AWS D1.1/D1.1M:2010 5.FABRICAÇÃO 210 Tabela 5.5 Tolerâncias de Abertura de Raízes Tubulares (ver 5.22.4.2) Face da Raiz da Junta Abertura de Raiz de Juntas sem Reforço de Aço Ângulo de Chanfro da Junta in mm in mm deg SMAW GMAW FCAW ±1/16 ±1/32 ±1/16 ±2 ±1 ±2 ±1/16 ±1/16 ±1/16 ±2 ±2 ±2 ±5 ±5 ±5 Observação: Aberturas de raiz mais largas que as permitidas pelas tolerâncias acima, mas não maiores que a espessura da parte mais fina, podem ser construídas por soldagem para dimensões aceitáveis antes da junção das partes por soldagem. Tabela 5.6 Tolerância de Abaulamento para Trave Típica (ver 5.23.3) Tolerância de Abaulamento (em polegadas) a/S Intervalo 0,1 0,2 0,3 0,4 0,5 ≥ 100 pés 9 / 16 1 1-1/4 1-7/16 1-1/2 < 100 pés 1/4 1/2 5/8 3/4 3/4 Tolerância de Abaulamento (em milímetros) a/S Intervalo 0,1 0,2 0,3 0,4 0,5 ≥ 3 m 14 25 34 38 40 < 30 m 7 13 17 19 20 Tabela 5.7 Tolerância de Abaulamento para Traves sem uma Mísula Concreta Projetada (ver 5.23.4) Tolerância de Abaulamento (em polegadas) a/S Intervalo 0,1 0,2 0,3 0,4 0,5 ≥ pés 1/4 1/2 5/8 3/4 3/4 < 100 pés 1/8 1/4 5/16 3/8 3/8 Tolerância de Abaulamento (em milímetros) a/S Intervalo 0,1 0,2 0,3 0,4 0,5 ≥ 3 m 7 13 17 19 20 < 30 m 4 6 8 10 10 Tabela 5.8 Tamanhos Mínimos de Solda de Filete (ver 5.14) Espessura do Metal Base (T)a Tamanho Mínimo da Solda de Fileteb in mm in mm T ≤ /4 T ≤ 6 1/8 (Nota c) 3 (Nota c) /4 ≤ T ≤ 1/2 6 ≤ T ≤ /2 3/16 5 /2 ≤ T ≤ 3/4 2 ≤ T ≤ 2 1/4 6 3/4 < T 20 < T 5/16 8 a Para processos que não são de baixo hidrogênio sem pré- aquecimento calculado em conformidade com 4.8.4, T é igual à espessura da parte mais grossa anexada; soldas de passe único devem ser usadas. Para processos que não são de baixo hidrogênio e usam procedimentos estabelecidos para prevenir trincas em conformidade com 4.8.4 e para processos de baixo hidrogênio, T é igual à espessura da parte mais fina anexada; requisitos de passe único não devem se aplicar. b Exceto que o tamanho de solda não precisa exceder a espessura da parte mais fina anexada. c O tamanho mínimo para estruturas ciclicamente carregadas deve ser 3/16 in [5 mm].
  • 231.
    AWS D1.1/D1.1M:2010 5.FABRICAÇÃO 211 Tabela 5.9 Perfis de Soldaa (ver 5.24) Tipo de Junta Tipo de Solda Topo Ângulo— Dentro Ângulo—Fora Junta em T- Sobreposta Topo com Barra de Prateleira Chanfro (CJP ou PJP) Figura 5.4A Figura 5.4Bb Figura 5.4C Figura 5.4Db N/A Figura 5.4G Programa A Programa B Programa A Programa B N/A Ver Nota c Filete N/A Figura 5.4E Figura 5.4F Figura 5.4E Figura 5.4E N/A N/A Programa C Programa C ou Dd Programa C Programa C N/A a Programas A a D são dados na Tabela 5.10. b Para soldas de filete de reforço requeridas por projeto, as restrições de perfil aplicam-se a cada solda, topo e filete, separadamente. c Soldas feitas usando barras de prateleira e soldas entre barras horizontais de espessuras desiguais estão isentas das limitações R e C. d Ver Figura 5.4F para uma descrição de onde os Programas C e D se aplicam. Tabela 5.10 Programas de Perfil de Solda (ver 5.24) Programa A (t = espessura da placa mais grossa anexada para CJP; t = tamanho da garganta para PJP) t R min. R máx. ≤ 1 in [25 mm] 0 1/8 in [3 mm] > 1 in [25 mm], ≤ 2 in [50 mm] 0 3/16 in [5 mm] > 2 in [50 mm] 0 1/4 in 6 mm]a Programa B (t = espessura da placa mais grossa anexada para CJP; t = tamanho da garganta para PJP; C = convexidade ou concavidade permissível) t R min. R máx. C min. C máx. < 1 in [25 mm] 0 ilimitado 0 1/8 in [3 mm] ≥ in 25 mm 0 ilimitado 0 3/16 in [5 mm] Programa C (W = largura da face de solda ou superfícies de esfera individual; C = convexidade permissível) W C min. C máx. b ≤ 5/ 6 in 8 mm 0 1/16 in [2 mm] > 5/16 in [8 mm], < 1 in [25 mm] 0 1/8 in [3 mm] ≥ 1 in [25 mm] 0 3/16 in [5 mm] Programa D (t = espessura da mais fina das dimensões de aresta expostas; ver Figura 5.4F) t C min. C máx. qualquer valor de t 0 t/2 a Para estruturas ciclicamente carregadas, R máx. para materiais > 2 in [50 mm] de espessura é 3/16 in [5 mm]. b C não deve exceder R.
  • 232.
    AWS D1.1/D1.1M:2010 4.QUALIFICAÇÃO 212 Figura 5.1 – Descontinuidades de Aresta em Material de Corte (ver 5.15.1.1)
  • 233.
    AWS D1.1/D1.1M:2010 5.FABRICAÇÃO 213 a O raio deve fornecer uma transição suave e livre de ranhura; R ≥ 3/8 in mm (Típico /2 in 2 mm ). b Orifício de acesso feito após soldar braçadeira a flange. c Orifício de acesso feito antes de soldar a braçadeira a flange. A solda braçadeira a flange não deve ser retornada através do orifício. d hmin = 3/4 in [20 mm] ou tw (espessura da braçadeira), o que for maior, hmin não precisa exceder 2 in [50 mm]. e Estes são detalhes típicos para juntas soldadas a partir de um lado em reforço de aço. Projetos de junta alternativos deveriam ser considerados. Observação: Para formas laminadas com espessura de flange maior que 2 in [50 mm] e formas construídas com espessura de material de braçadeira maior que 1-1/2 in [40 mm], pré-aquecimento a 150°F [65°C] antes de corte térmico, retificação e inspeção de arestas cortadas termicamente para orifício de acesso usando métodos MT ou PT antes de fazer soldas em chanfro de emenda de braçadeira e flange. Figura 5.2 – Geometria do Orifício de Acesso da Solda (ver 5.17.1)
  • 234.
    AWS D1.1/D1.1M:2010 5.FABRICAÇÃO 214 Raiz Sem Goivagem por trás Raiz com Goivagem por trás in mm in mm (1) Face de raiz da junta ±1/16 2 Não limitado (2) Abertura de raiz de juntas sem reforço ±1/16 2 +1/16 –1/80 2 3 Abertura de raiz de juntas com reforço +1/4 –1/16 6 2 Não aplicável (3) Ângulo de chanfro da junta +10 –5 +10 –5 Observação: Ver 5.22.4.2 para tolerâncias para soldas em chanfro CJP tubulares feitas a partir de um lado sem reforço. Figura 5.3 - Tolerâncias de Mão-de-Obra na Montagem de Juntas Soldadas em Chanfro (ver 5.22.4.1)
  • 235.
    AWS D1.1/D1.1M:2010 5.FABRICAÇÃO 215 Figura 5.4 – Requisitos para Perfis de Solda (ver Tabelas 5.9 e 5.10)
  • 236.
    AWS D1.1/D1.1M:2010 5.FABRICAÇÃO 216 Figura 5.4 (Continuação) – Requisitos para Perfis de Solda (ver Tabelas 5.9 e 5.10)
  • 237.
    AWS D1.1/D1.1M:2010 5.FABRICAÇÃO 217 Figura 5.4 (Continuação) – Requisitos para Perfis de Solda (ver Tabelas 5.9 e 5.10)
  • 238.
    AWS D1.1/D1.1M:2010 5.FABRICAÇÃO 218 Figura 5.4 (Continuação) – Requisitos para Perfis de Solda (ver Tabelas 5.9 e 5.10)
  • 239.
    AWS D1.1/D1.1M:2010 219 Esta páginaestá intencionalmente em branco
  • 240.
    AWS D1.1/D1.1M:2010 220 6. Inspeção ParteA Requisitos Gerais 6.1 Âmbito A Cláusula 6 contém todos os requisitos para as qualificações e responsabilidades do Inspetor, critérios de aceitação para descontinuidades e procedimentos para NDT. 6.1.1 Informações Fornecidas aos Licitantes. Quando NDT que não seja visual será requerido, isso deve ser declarado nas informações fornecidas aos licitantes. Essas informações devem designar as categorias de soldas a serem examinadas, a extensão do exame de cada categoria e o método ou métodos de teste. 6.1.2 Estipulações de Contrato e Inspeção. Para o propósito desse código, teste e inspeção de fabricação/ereção, e teste e inspeção de verificação devem ser funções separadas. 6.1.2.1 Inspeção do Empreiteiro. Esse tipo de inspeção e teste deve ser realizado conforme necessário antes da montagem, durante a montagem, durante a soldagem e após a soldagem, para assegurar que materiais e mão-de-obra atendam aos requisitos dos documentos de contrato. Inspeção e teste de fabricação/ereção devem ser responsabilidades do Empreiteiro a menos que de outra forma estabelecido nos documentos de contrato. 6.1.2.2 Inspeção de Verificação. Esse tipo de inspeção e teste deve ser realizado e seus resultados relatados ao Proprietário e Empreiteiro em tempo hábil para evitar atrasos no trabalho. Inspeção e teste de verificação são prerrogativas do Proprietário, que pode realizar essa função ou, quando estabelecido no contrato, renunciar a verificação dependente ou estipular que inspeção e verificação devem ser realizadas pelo Empreiteiro. 6.1.3 Definição de Categorias de Inspetor 6.1.3.1 Inspetor do Empreiteiro. Esse inspetor é a pessoa devidamente designada que age pelo, e em nome do, Empreiteiro em todas as inspeções e questões de qualidade no âmbito dos documentos de contrato. 6.1.3.2 Inspetor de Verificação. Esse inspetor é a pessoa devidamente designada que age pelo, e em nome do, Empreiteiro ou Engenheiro em todas as inspeções e questões de qualidade no âmbito dos documentos de contrato. 6.1.3.3 Inspetor(es). Quando o termo inspetor é usado sem qualificação adicional sobre a categoria específica de inspetor descrita acima, ele aplica-se igualmente a inspeção e verificação dentro dos limites de responsabilidade descritos em 6.1.2. 6.1.4 Requisitos de Qualificação do Inspetor 6.1.4.1 Base para Qualificação. Os inspetores responsáveis pela aceitação ou rejeição de material e mão- de-obra devem ser qualificados. As bases de qualificação do Inspetor devem ser documentadas. Se o Engenheiro escolher especificar as bases de qualificação de inspetor, isso deve ser especificado nos documentos de contrato. A base de qualificação aceitável deve ser a seguinte: (1) Certificação atual ou anterior como um Inspetor de Soldagem Certificado (Certified Welding Inspector - CWI) da AWS em conformidade com as provisões de QC1, Standard for AWS Certification of Welding Inspectors, da AWS, ou (2) Qualificação atual ou anterior pelo Canadian Welding Bureau (CWB) em conformidade com os requisitos da Canadian Standard Association (CSA) Standard W178.2, Certification of Welding Inspectors, ou (3) Um indivíduo que, por treino ou experiência, ou ambos, em fabricação inspeção e teste de metais, é competente para realizar inspeção do trabalho 6.1.4.2. Prazo de Efetividade. A qualificação de um Inspetor deve permanecer efetiva indefinidamente, contanto que o Inspetor permaneça ativo em inspeção de fabricação de aço soldado, a menos que haja razão específica para questionar a habilidade do Inspetor.
  • 241.
    AWS D1.1/D1.1M:2010 6.INSPEÇÃO 221 6.1.4.3 Inspetor Assistente. O Inspetor pode ser apoiado por Inspetores Assistentes que podem realizar funções específicas de inspeção sob a supervisão do Inspetor. Inspetores Assistentes devem ser qualificados por treino e experiência para realizar as funções específicas para a qual são designados. O trabalho de Inspetores Assistentes deve ser regularmente monitorado pelo Inspetor, geralmente em uma base diária. 6.1.4.4 Exame Oftalmológico. Inspetores e Inspetores Assistentes devem ter passado por um exame oftalmológico com ou sem lentes corretivas para provar sua acuidade de visão de perto de Jaeger J-2 a uma distância de 12 in-17 in [300 mm-430 mm]. O exame de vista de toda a equipe de inspeção deve ser requerido a cada três anos ou menos, se necessário, para demonstrar adequação. 6.1.4.5 Autoridade de Verificação. O Engenheiro deve ter autoridade para verificar a qualificação dos Inspetores. 6.1.5 Responsabilidade do Inspetor. O Inspetor deve verificar que toda fabricação e ereção por soldagem seja realizada em conformidade com os requisitos dos documentos de contrato. 6.1.6 Itens a serem Fornecidos ao Inspetor. Ao Inspetor devem ser fornecidos desenhos detalhados completos mostrando o tipo de tamanho de comprimento de todas as soldas a serem feitas. Ao Inspetor também devem ser fornecida a porção dos documentos de contrato que descreve os requisitos de material e qualidade para os produtos a serem fabricados ou eregidos, ou ambos. 6.1.7 Notificação do Inspetor. O Inspetor deve ser notificado previamente do início de operações sujeitas a inspeção e verificação. 6.2 Inspeção de Materiais e Equipamento O Inspetor do Empreiteiro deve assegurar que apenas materiais e equipamentos em conformidade com os requisitos deste código devem ser usados. 6.3 Inspeção de WPSs 6.3.1 WPS Pré-qualificada. O Inspetor do Empreiteiro deve assegurar que todas as WPSs pré-qualificadas a serem usadas para o trabalho estejam em conformidade com os requisitos da Cláusula 3, da Cláusula 5 e dos documentos de contrato. 6.3.2 WPSs Qualificadas por Teste. O Inspetor do Empreiteiro deve assegurar que todas as WPSs qualificadas por teste estejam em conformidade com os requisitos das Cláusulas 4 e 5 e dos documentos de contrato. 6.3.3 WPSs na Produção. O Inspetor do Empreiteiro deve assegurar que todas as operações de soldagem sejam realizadas em conformidade com WPSs que atendem aos requisitos deste código e aos documentos de contrato. 6.4 Inspeção de Qualificações de Soldador, Operador de Soldagem e Soldador Ponteador 6.4.1 Determinação de Qualificação. O Inspetor deve permitir que a soldagem seja realizada apenas por soldadores, operadores de soldagem ou soldadores ponteadores que sejam qualificados em conformidade com os requisitos da Cláusula 4, ou deve assegurar que cada soldador, operador de soldagem ou soldador ponteador tenha demostrado previamente tal qualificação sob outra supervisão aceitável e aprovada pelo Engenheiro em conformidade com 4.2.2.1. 6.4.2 Reteste com Base na Qualidade do Trabalho. Quando a qualidade do trabalho de um soldador, operador de soldagem ou soldador ponteador parece estar abaixo dos requisitos desse código, o Inspetor pode requerer que o soldador, operador de soldagem ou soldador ponteador demonstre uma habilidade de produzir soldas estáveis por meio de um teste simples, como teste de ruptura de solda de filete, ou requerer requalificação completa em conformidade com a Cláusula 4. 6.4.3 Reteste com Base na Expiração da Qualificação. O Inspetor deve requerer requalificação de qualquer soldador ou operador de soldagem qualificado que não tenha usado o processo (para o qual eles são qualificados) por um período que exceda seis meses (ver 4.2 .3.1). 6.5 Inspeção de Trabalho e Registros 6.5.1 Tamanho, Comprimento e Local das Soldas. O Inspetor deve assegurar que o tamanho, comprimento e local de todas as soldas esteja em conformidade com os requisitos desse código e com os desenhos de detalhe, e que nenhuma solda não especificada tenha sido acrescentada sem a aprovação do Engenheiro. 6.5.2 Âmbito dos Exames. O Inspetor deve, em intervalos adequados, observar preparação de junta, prática de montagem, as técnicas de soldagem e o desempenho de cada soldador, operador de soldagem e soldador ponteador para assegurar que os requisitos aplicáveis desse código sejam atendidos. 6.5.3 Extensão do Exame. O Inspetor deve examinar o trabalho para assegurar que atenda aos requisitos desse código. Outros critérios de aceitação, diferentes daqueles descritos nesse código, podem ser usados quando aprovados pelo Engenheiro. Tamanho e contorno de soldas devem ser medidos com medidores adequados. A inspeção visual de trincas em soldas e metal base e outras descontinuidades devem ser auxiliadas por uma luz forte, lupas ou outros dispositivos que podem ser considerados úteis.
  • 242.
    AWS D1.1/D1.1M:2010 6.INSPEÇÃO 222 6.5.4 Identificação do Inspetor nas Inspeções Realizadas. Os Inspetores devem identificar com uma marca distinta ou outros métodos de registro todas as partes ou juntas que inspecionaram e aceitaram Qualquer método de registro que seja acordado mutuamente pode ser usado. Estampagem matriz de membros cislicamente carregados sem aprovação do Engenheiro deve ser proibida. 6.5.5 Manutenção de Registros. O Inspetor deve manter um registro de qualificação de todos os soldadores, operadores de soldagem e soldadores ponteadores; de todas as qualificações WPS ou outros testes feitos; e de todas as outras informações que podem ser requeridas. Parte B Responsabilidades do Empreiteiro 6.6 Obrigações do Empreiteiro 6.6.1 Responsabilidades do Empreiteiro. O Em-preiteiro deve ser responsável pela inspeção visual e correção necessária de todas as deficiências em material e mão-de- obra em conformidade com os requerimentos desse código. 6.6.2. Requisições do Inspetor. O Empreiteiro deve atender todas as requisições do(s) Inspetor(es) para corrigir deficiências em material e mão-de-obra como estabelecido nos documentos de contrato. 6.6.3 Julgamento de Engenharia. No evento de uma soldagem defeituosa, ou sua remoção para nova soldagem, danificar o metal base de forma que no julgamento do Engenheiro sua retenção não está em conformidade com a intenção dos documentos de contrato, o Empreiteiro deve remover e substituir o metal base danificado ou deve compensar a deficiência de uma maneira aprovada pelo Engenheiro. 6.6.4 NDT Especificado Não Visual. Quando inspeção NDT não visual é especificada na informação fornecida aos licitantes, deve ser responsabilidade do Empreiteiro assegurar que todas as soldas especificadas atendam aos requisitos de qualidade da Cláusula 6, Parte 6, o que for aplicável. 6.6.5 NDT Não Especificado, Não Visual. Se inspeção NDT não visual não é especificado no acordo original de contrato, mas é subsequentemente requisitado pelo Proprietário, o Empreiteiro deve realizar qualquer teste requisitado ou deve permitir que qualquer teste seja realizado em conformidade com 6.14. O Proprietário deve ser responsável por todos os custos associados, inclusive manuseio, preparação de superfície, NDT e reparo de descontinuidades que não aquelas descritas em 6.9, o que for aplicável, a taxas de mútuo acordo entre Proprietário e Empreiteiro. No entanto, se tal teste revelar uma tentativa de fraudar ou mascarar a não conformidade com esse código, o trabalho de reparo deve ser feito às custas do Empreiteiro. Parte C Critérios de Aceitação 6.7 Âmbito Critérios de aceitação para inspeção NDT visual de conexões tubulares e conexões não tubulares estaticamente e ciclicamente carregadas são descritos na Parte C. A extensão do exame e os critérios de aceitação devem ser especificados nos documentos de contrato nas informações fornecidas ao licitante. 6.8 Aprovação do Engenheiro para Critérios de Aceitação Alternativos A premissa fundamental do código é fornecer estipulações gerais aplicáveis à maioria das situações. Critérios de aceitação para soldas de produção diferentes daqueles descritos nesse código podem ser usados para uma aplicação particular, contanto que sejam adequadamente documentados pelo proponente e aprovados pelo Engenheiro. Esses critérios de aceitação alternativos podem ser baseados na avaliação de adequação para serviço usando experiência passada, evidência experimental ou análise de engenharia considerando tipo de material, efeitos de carga de serviço e fatores ambientais. 6.9 Inspeção Visual Todas as soldas devem ser inspecionadas visualmente e devem ser aceitáveis se os critérios da Tabela 6.1 forem satisfeitos. 6.10 PT e MT Soldas que são sujeitas a MT e PT, além da inspeção visual, devem ser avaliadas com base nos requisitos aplicáveis para inspeção visual. O teste deve ser realizado em conformidade com 6.14.4 ou 6.14.5, o que for aplicável. 6.11 NDT Exceto conforme fornecido em 6.18, todos os métodos NDT, inclusive requisitos e qualificações de equipamento, qualificação de pessoal e métodos de operação devem estar em conformidade com a Cláusula 6, Inspeção. Critérios de aceitação devem ser como descrito nessa seção. Soldas sujeitas a NDT devem ter sido consideradas aceitáveis por inspeção visual em conformidade com 6.9. Para soldas sujeitas a NDT em conformidade com 6.10, 6.11, 6.12.1 e 6.13.3, o teste pode começar imediatamente após as soldas concluídas terem resfriado até a temperatura ambiente. Critérios de aceitação para aços A 514, A 517 e A 709 Grau 100 e 100W da ASM devem ser baseados em
  • 243.
    AWS D1.1/D1.1M:2010 6.INSPEÇÃO 223 NDT realizado não menos que 48 horas depois da conclusão das soldas. 6.11.1 Requisitos de Conexões Tubulares. Para soldas de topo em chanfro CJP soldadas a partir de um lado sem reforço, todo o comprimento de todas as soldas de produção tubulares concluídas deve ser examinado por RT ou UT. Os critérios de aceitação devem estar em conformidade com 6.12.1 ou 6.13.3, conforme aplicável. 6.12 RT Soldas que mostram por RT que não atendem aos requisitos da Parte C, ou critérios de aceitação alternativos por 6.8, devem ser reparadas em conformidade com 5.26. Outras descontinuidades que não sejam trincas devem ser avaliadas na base de serem alongadas ou arredondadas. A despeito do tipo de descontinuidade, uma descontinuidade alongada deve ser definida como aquela em que o comprimento excede três vezes a largura. Uma descontinuidade arredondada deve ser definida como aquela cujo comprimento é três vezes ou menos a largura, e pode ser arredondada ou irregular e pode ter a extremidade final alongada. 6.12.1 Critérios de Aceitação de Descontinuidade para Conexões Não Tubulares Estaticamente Carregadas e Conexões Tubulares Estaticamente ou Ciclicamente Carregadas. Soldas que são sujeitas a RT além da inspeção visual não devem ter trincas e devem ser inaceitáveis se o RT mostrar quaisquer descontinuidades que excedam as seguintes limitações. As limitações dadas pela Figura 6.1 para tamanho de solda (E) de 1-1/8 in [30 mm] deve aplicar-se a todos os tamanhos de solda maiores que 1-1/8 in [30 mm]. (1) Descontinuidades alongadas excedendo o tamanho máximo da Figura 6.1. (2) Descontinuidades mais próximas que a permissão mínima de espaço da Figura 6.1. (3) Descontinuidades arredondadas maiores que o tamanho máximo de E/3, para não exceder 1/4 in [6 mm]. No entanto, quando E é maior que 2 in [50 mm], a indicação de arredondamento máximo pode ser 3/8 in [10 mm]. O espaçamento mínimo de descontinuidades arredondadas maiores ou iguais que 3/32 in [2,5 mm] para uma descontinuidade alongada ou arredondada aceitável ou para uma aresta ou extremidade de solda de intersecção deve ser três vez es a maior dimensão da maior das descontinuidades sendo considerada. (4) Na intersecção de uma solda com outra solda ou uma aresta livre (isto é, uma aresta além da qual não não existe extensão material), descontinuidades aceitáveis devem estar em conformidade com as limitações da Figura 6.1, Casos 1-N. (5) Descontinuidades isoladas tais como um grupo de indicações arredondadas, tendo uma soma das maiores dimensões excedendo o tamanho máximo de descontinuidade única permitido na Figura 6.1. O espaçamento mínimo para outro grupo, ou para uma descontinuidade alongada ou arredondada, ou para uma aresta ou extremidade de uma solda de intersecção deve ser três vezes a maior dimensão da maior das descontinuidades sendo considerada. (6) A soma de descontinuidades individuais cada uma tendo uma dimensão maior de menos de 3/32 in [2,5 mm] não deve exceder 2e/3 ou 3/8 in [10 mm], o que for menor, em qualquer 1 in [25 mm] linear de solda. Esse requisito é independente de (1), (2) e (3) acima. (7) Descontinuidades em linha, em que a soma das maiores dimensões excedem E em qualquer comprimento de 6E. Quando o comprimento da solda sendo examinada é menor que 6E, a soma permissível das maiores dimensões deve ser proporcionalmente menor. 6.12.2 Critérios de Aceitação de Descontinuidade para Conexões Não Tubulares Ciclicamente Carregadas. Soldas que são sujeitas a RT além de inspeção visual não devem ter trincas e devem ser inaceitáveis se o RT mostra qualquer dos tipos de descontinuidades descritas em 6.12.2.1, 6.12.2.2 ou 6.12.2.3. As limitações dadas pelas Figuras 6.2 e 6.3 para tamanho de solda (E) de 1-1/2 in [38 mm] devem aplicar-se para todos os tamanhos de solda maiores que 1-1/2 in [38 mm]. 6.12.2.1 Conexões Não Tubulares Ciclicamente Carregadas em Tensão (1) Descontinuidades excedendo o tamanho máximo da Figura 6.2. (2) Descontinuidades mais próximas que a permissão mínima de espaço da Figura 6.2. (3) Na intersecção de uma solda com outra solda ou uma aresta livre (isto é, uma aresta além da qual não existe extensão material), descontinuidades aceitáveis devem estar em conformidade com as limitações da Figura 6.2, Casos 1- N. (4) Descontinuidades isoladas tais como um grupo de indicações arredondadas, tendo uma soma das maiores dimensões excedendo o tamanho máximo de descontinuidade única permitido na Figura 6.2. O espaçamento mínimo para outro grupo, ou para uma descontinuidade alongada ou arredondada, ou para uma aresta ou extremidade de uma solda de intersecção deve ser três vezes a maior dimensão da maior das descontinuidades sendo considerada. (5) A soma de descontinuidades individuais cada uma tendo uma dimensão maior de menos de 3/32 in [2,5 mm] não deve exceder 2E/3 ou 3/8 in [10 mm], o que for menor, em qualquer 1 in [25 mm] linear de solda. Esse requisito é independente de (1), (2) e (3) acima. (6) Descontinuidades em linha, em que a soma das maiores dimensões excede E em qualquer comprimento de 6E. Quando o comprimento da solda sendo examinada é menor que 6E, a soma permissível das maiores dimensões deve ser proporcionalmente menor.
  • 244.
    AWS D1.1/D1.1M:2010 6.INSPEÇÃO 224 6.12.2.2 Conexões Não Tubulares Ciclicamente Carregadas em Compressão (1) Descontinuidades excedendo o tamanho máximo da Figura 6.3. (2) Descontinuidades mais próximas que a permissão mínima de espaço da Figura 6.3. (3) Na intersecção de uma solda com outra solda ou uma aresta livre (isto é, uma aresta além da qual não existe extensão material), descontinuidades aceitáveis devem estar em conformidade com as limitações da Figura 6.3, Casos I- V. (4) Descontinuidades isoladas como um grupo de indicações arredondadas, tendo uma soma de suas maiores dimensões excedendo o tamanho máximo de descontinuidade única permitido na Figura 6.3. O espaçamento mínimo para outro grupo, ou para uma descontinuidade alongada ou arredondada, ou para uma aresta ou extremidade de uma solda de intersecção deve ser três vezes a maior dimensão da maior das descontinuidades sendo considerada. (5) A soma de descontinuidades individuais cada uma tendo uma dimensão maior de menos de 3/32 in [2,5 mm] não deve exceder 2E/3 ou 3/8 in [10 mm], o que for menor, em qualquer 1 in [25 mm] linear de solda. Esse requisito é independente de (1), (2) e (3) acima. (6) Descontinuidades em linha, em que a soma das maiores dimensões excede E em qualquer comprimento de 6E. Quando o comprimento da solda sendo examinada é menor que 6E, a soma permissível das maiores dimensões deve ser proporcionalmente menor. 6.12.2.3 Descontinuidades Maiores que 1/16 in [2 mm]. Além dos requisitos de 6.12.2.1 e 6.12.2.2, descontinuidades tendo uma dimensão maior de menos de 1/16 in [2 mm] devem ser inaceitáveis se a soma de suas maiores dimensões excede 3/8 in [10 mm] em qualquer polegada linear de solda. 6.13 UT 6.13.1 Critérios de Aceitação para Conexões Não Tubulares Estaticamente Carregadas. Os critérios de aceitação para soldas sujeitas a UT além de visual inspeção devem atender os requisitos da Tabela 6.2. Para solda CJP braçadeira-a-flange, a aceitação de descontinuidades detectadas por movimentos de escaneamento que não o padrão de escaneamento 'E' (ver 6.32.2.2) pode ser baseada em espessura de solda igual à espessura real da braçadeira mais 1 in [25 mm]. Descontinuidades detectadas pelo padrão de escaneamento 'E' devem ser avaliadas pelos critérios da Tabela 6.2 para a espessura real da braçadeira. Quando soldas CJP braçadeira-a-flange são sujeitas a tensão de tração calculada normal para a solda, elas devem ser assim designadas nos desenhos de projeto e devem estar em conformidade com os requisitos da Tabela 6.2. Soldas testadas por ultra-som são avaliadas com base em um ultra- som refletindo descontinuidade em proporção a seu efeito na integridade da solda. Indicações de descontinuidades que permanecem no visor enquanto a unidade de busca é movida em direção a e para longe da descontinuidade (movimento de escaneamento "b") podem ser indicativas de descontinuidades planares com dimensão significativa através da garganta. Como a superfície refletora principal das descontinuidades mais críticas é orientada um mínimo de 20º (para uma unidade de busca de 70º) a 45' (para uma unidade de busca de 45') de perpendicular ao feixe sonoro, a avaliação da amplitude (taxa dB) não permite disposição confiável. Quando indicações exibindo essas características planares estão presentes na sensibilidade de escaneamento, uma avaliação mais detalhada da descontinuidade por outros meios deve ser requerida (por exemplo, técnicas UT alternativas, RT, retificação ou goivagem para inspeção visual, etc.). 6.13.2 Critérios de Aceitação para Conexões Não Tubulares Ciclicamente Carregadas. Os critérios de aceitação para soldas sujeitas a UT além de inspeção visual deve atender os seguintes requisitos: (1) Soldas sujeitas a tensão de tração sob qualquer condição de carga devem estar em conformidade com os requisitos da Tabela 6.3. (2) Soldas sujeitas a tensão compressiva devem estar em conformidade com os requisitos da Tabela 6.2. 6.13.2.1 Indicações. Soldas testadas por ultra-som são avaliadas com base em um ultra-som refletindo descontinuidade em proporção a seu efeito na integridade da solda. Indicações de descontinuidades que permanecem no visor enquanto a unidade de busca é movida em direção a e para longe da descontinuidade (movimento de escaneamento "b") podem ser indicativas de descontinuidades planares com dimensão significativa através da garganta Como a orientação de tais descontinuidades, com relação ao feixe sonoro, desvia de perpendicular, podem resultar taxas de dB que não permitem avaliação direta e confiável da integridade da junta soldada. Quando indicações que exibem essas características planares estão presentes na sensibilidade de escaneamento, uma avaliação mais detalhada da descontinuidade por outros meios pode ser requerida (por exemplo, técnicas UT alternativas, RT, retificação ou goivagem para inspeção visual, etc.). 6.13.2.2 Escaneamento. Soldas CJP braçadeira-a-flange devem estar em conformidade com os requisitos da Tabela 6.2, e a aceitação de descontinuidades detectadas por movimentos de escaneamento que não o padrão de escaneamento 'E' (ver 6.32.2.2) podem ser baseadas em uma espessura de solda igual à espessura real da braçadeira mais 1 in [25 mm]. Descontinuidades detectadas pelo padrão de escaneamento 'E' devem ser avaliadas pelos critérios de 6.13.2 para a espessura real da braçadeira. Quando tais soldas braçadeira-a-flange são sujeitas a tensão de tração calculada normal à solda, elas devem ser assim designadas em desenhos de projeto e devem estar em conformidade com os requisitos da Tabela 6.3.
  • 245.
    AWS D1.1/D1.1M:2010 6.INSPEÇÃO 225 6.13.3 Critérios de Aceitação para Conexões Tubulares. Critérios de aceitação para UT devem ser fornecidos nos documentos de contrato. Classe R ou Classe X, ou ambas, podem ser incorporadas por referência. Critérios de aceitação baseados em amplitude, como dado por 6.13.1, também podem ser usados para soldas em chanfro em juntas de topo em tubulações de diâmetro de 24 in [600 mm] e acima, contanto que todas as provisões relevantes da Cláusula 6, Parte F, sejam seguidas. No entanto, esses critérios de amplitude não deve ser aplicado a conexões tubulares em T-, Y- e K-. 6.13.3.1 Classe R (Aplicável Quando UT é Usado como uma Alternativa para RT). Todas as indicações tendo metade (6 dB) ou menos amplitude que o nível de sensibilidade padrão (com devida consideração a 6.27.6) devem ser desconsideradas. Indicações excedendo o nível de desconsideração devem ser avaliadas como segue: (1) Refletores esféricos aleatórios isolados, com separação mínima de 1 in [25 mm] até o nível de sensibilidade padrão devem ser aceitas. Refletores maiores devem ser avaliados como refletores lineares. (2) Refletores esféricos alinhados devem ser avaliados como refletores lineares. (3) Refletores esféricos agrupados tendo uma densidade de mais de um por polegada quadrada [645 milímetros quadrados] com indicações acima do nível de desconsideração (área projetada normal à direção da tensão aplicada, com média acima de 6 in [150 mm] de comprimento de solda) devem ser rejeitados. (4) Refletores lineares ou planares cujos comprimentos (extensão) excedem os limites da Figura 6.4 devem ser rejeitados. Além disso, refletores de raiz não devem exceder os limites da Classe X. 6.13.3.2 Classe X (Critérios de Adequação ao Propósito Baseados na Experiência Aplicáveis a Conexões em T-, Y- e K- em Estruturas Redundantes com Ligação Soldada Resistente ao Entalhe). Todas as indicações tendo metade (6 dB) ou menos amplitude que o nível de sensibilidade padrão (com devida consideração a 6.27.6) devem ser desconsideradas. Indicações excedendo o nível de desconsideração devem ser avaliadas como segue: (1) Refletores esféricos devem ser como descrito na Classe R, exceto que quaisquer indicações dentro dos seguintes limites para linear ou planar devem ser aceitáveis. (2) Refletores lineares ou planares devem ser avaliados por meio de técnicas de limite de feixe, e aqueles cuja dimensão exceder os limites da Figura 6.5 devem ser rejeitados. A área de raiz deve ser definida como jazendo em 1/4 in [6 mm] ou tw/4, o que for maior, da raiz da solda teórica, como mostrado na Figura 3.8. Parte D Procedimentos NDT 6.14 Procedimentos Os procedimentos NDT como descritos nesse código têm sido usados por muitos anos e fornecem uma segurança razoável de integridade da solda; no entanto, parece que alguns usuários do código incorretamente consideram cada método capaz de detectar todas as descontinuidades inaceitáveis. Usuários do código deviam tornar-se familiares com todas as limitações dos métodos NDT a serem usados, particularmente a inabilidade de detectar e caracterizar descontinuidades planares com orientações específicas. (As limitações e uso complementar de cada método são explicados na última edição de B1.10, Guide for Nondestructive Examination of Welds, da AWS). 6.14.1 RT. Quando RT é usado, o procedimento e técnica devem estar em conformidade com a Parte E dessa seção. 6.14.2 Sistemas de Imagem por Radiação. Quando exame é realizado usando sistemas de imagem por radiação, o procedimento e técnica devem estar em conformidade com a Parte G dessa seção. 6.14.3 UT. Quando UT é usado, o procedimento e técnica devem estar em conformidade com a Parte E dessa seção. 6.14.4 MT. Quando MT é usado, o procedimento e técnica devem estar em conformidade com E 709 da ASTM, e o padrão de aceitação deve estar em conformidade com a Cláusula 6, Parte C, deste código, o que for aplicável. 6.14.5 PT. Para detectar descontinuidades abertas na superfície, PT pode ser usado. Os métodos padrão estabelecidos em E 165 da ASTM devem ser usados para inspeção PT, e os padrões de aceitação devem estar em conformidade com a Cláusula 6, Parte C, deste código, o que for aplicável. 6.14.6 Qualificação de Equipe 6.14.6.1 Requisitos ASNT. A equipe realizando NDT não visual deve estar qualificada em conformidade com a atual edição de American Society for Nondestructive Testing Recommended Practice Nº SNT-TC-IA. Indivíduos que realizam NDT devem estar qualificados para: (1) NDT Nível II, ou (2) NDT Nível I trabalhando sob o NDT Nível II 6.14.6.2 Certificação. A certificação de indivíduos Nível I e Nível II deve ser realizada por um indivíduo Nível III que foi certificado por (1) The American Society for Nondestructive Testing, ou (2) tem educação, treinamento, experiência e passou com sucesso o exame escrito descrito em SNT-TC-lA.
  • 246.
    AWS D1.1/D1.1M:2010 6.INSPEÇÃO 226 6.14.6.3 Isenção de Requisitos QC1. Equipe realizando NDT sob as provisões de 6.14.6. não precisam ser qualificadas e certificadas sob as provisões de AWSQCL. 6.15 Extensão do Teste Informações fornecidas aos licitantes devem claramente identificar a extensão de NDT (tipos, categorias ou localização) de soldas a serem testadas. 6.15.1 Teste Completo. Juntas de soldas que requerem teste por especificação de contrato devem ser testadas em seu comprimento total, a menos que teste parcial ou localizado seja especificado. 6.15.2 Teste Parcial. Quando teste parcial é especificado, o local e comprimentos das soldas ou categorias de soldas a serem testadas devem ser claramente designados nos documentos de contrato. 6.15.3 Teste Localizado. Quando teste localizado é especificado, o número de pontos em cada categoria designada de junta soldada deve ser testado em um comprimento de solda estabelecido ou um segmento designado de solda deve ser incluído nas informações fornecidas aos licitantes. Cada teste localizado deve cobrir pelo menos 4 in [100 mm] do comprimento de solda. Quando testes localizados revelam indicações de descontinuidades inaceitáveis que requerem reparo, a extensão de tais descontinuidades deve ser explorada. Dois pontos adicionais no mesmo segmento de junta de solda devem ser tomados em locais distantes do ponto original. O local dos pontos adicionais deve ser concordado mutuamente entre o Empreiteiro e o Inspetor de Verificação. Quando um dos pontos adicionais exibe defeitos que requerem reparos, todo o segmento de solda representado pelo ponto original deve ser completamente testado. Se a solda envolve mais de um segmento, dois pontos adicionais em cada segmento devem ser testados em locais aceitos pelo Empreiteiro e pelo Inspetor de Verificação, sujeito à interpretação precedente. 6.15.4 Informações Relevantes. A equipe NDT deve, antes do teste, ser provida ou ter acesso a informações relevantes a respeito das geometrias da junta de solda, espessuras de materiais e processos de soldagem usados para fazer a ligação soldada. A equipe NDT deve ser informada de quaisquer reparos subsequentes na solda. Parte E Teste Radiográfico (RT) 6.16 RT de Soldas em Chanfro em Juntas de Topo. 6.16.1 Procedimentos e Padrões. Os procedimentos e padrões estabelecidos na Parte E devem governar o RT de soldas quando tal inspeção é requerida por documentos de contrato como dado por 6.14. Os requisitos descritos aqui são especificamente para testar soldas em chanfro em juntas de topo em placas, formas e barras por fontes de raio-x ou raio gama. A metodologia deve estar em conformidade com E 94, Standard Recommended Practice for Radiographic Testing, da ASTM, E 142, Standard Method for Controlling Quality of Radiographic Testing, da ASTM, E 747, Controlling Quality of Radiographic Testing Using Wire Penetrameters, da ASTM e E 1032, Radiographic Examination of Weldments, da ASTM. 6.16.2 Variações. Variações em procedimentos, equipa- mento e padrões de aceitação de teste podem ser usados mediante acordo entre o Empreiteiro e o Proprietário. Tais variações incluem, entre outros, o seguinte: RT de soldas em filete, em T- e em ângulo; modificações na distância fonte-a-filme; aplicação incomum de filme; aplicações de indicadores de qualidade de imagem (IQI) do tipo orifício ou tipo arame incomuns (inclusive IQI lado filme), e RT de espessura maior que 6 in [150mm] em tipos de filme, densidades e variações em exposição, desenvolvimento e técnicas de visualização. 6.17 RT Procedimentos 6.17.1 Procedimento. Radiografias devem ser feitas usando uma única fonte de radiação X ou gama. A sensibilidade radiográfica deve ser julgada com base nos IQIs de tipo de imagem do orifício ou de arame. Técnica e equipamento radiográfico devem fornecer sensibilidade suficiente para delinear claramente os IQIs requeridos para tipo de orifício e os orifícios ou arames essenciais como descrito em 6.17.7, Tabelas 6.4 e 6.5 e Figuras 6.6 e 6.7. A identificação de letras e números deve ser mostrada claramente na radiografia. 6.17.2 Requisitos de Segurança. RT deve ser realizado em conformidade com todos os requisitos aplicáveis de segurança. 6.17.3 Remoção de Reforço. Quando od documentos de contrato requerem a remoção de reforço de solda, as soldas devem ser preparadas para RT por retificação como descrito em 5.24.3.1. Outras superfícies de solda não precisam ser retificadas ou alisadas de outra forma para os propósitos de RT, a menos que as irregularidades de superfície ou a junção entre solda e metal base possa causar descontinuidades de solda censuráveis a serem obscurecidas na radiografia. 6.17.3.1 Guias. Guias de solda devem ser removidas antes do RT a menos que de outra forma aprovado pelo Engenheiro. 6.17.3.2 Reforço de Aço. Quando requerido por 5.10 ou outras provisões de documentos de contrato, reforço de aço deve ser removido e a superfície deve ser nivelada com acabamento por retificação antes do RT. A retificação deve ser como descrito em 5.24.3.1. 6.17.3.3 Reforço. Quando o reforço de solda não é removido, ou a colocação alternativa de arame IQI não é usada, calços de aço que se estendem pelo menos 1/8 [3 mm] além de três lados do IQI de tipo de orifício ou IQI de
  • 247.
    AWS D1.1/D1.1M:2010 6.INSPEÇÃO 227 arame devem ser colocados sob o IQI de tipo orifício ou IQI de arame, para que a espessura total do aço entre o IQI de tipo de orifício e o filme seja aproximadamente igual à espessura média da solda medida através de seu reforço. 6.17.4 Filme Radiográfico. Filme radiográfico deve ser como descrito em E 94, da ASTM. Telas de folha de chumbo devem ser como descrito em E 94, da ASTM. Telas fluorescentes devem ser proibidas. 6.17.5 Técnica. Radiografias devem ser feitas com uma única fonte de radiação centrada tão perto quanto praticável com respeito ao comprimento e largura da parte da solda sendo examinada. 6.17.5.1 Embotamento Geométrico. Fontes de raio gama, a despeito do tamanho, devem ser capazes de atender às limitações de embotamento geométrico de Boiler and Pressure Vessel Code, Seção V, Artigo 2 da ASME. 6.17.5.2 Distância Fonte-a-Sujeito. A distância fonte- a-sujeito não deve ser menor que o comprimento total do filme sendo exposto em um plano único. Essa provisão não deve aplicar-se a exposições panorâmicas feitas sob as provisões de 6.16.2. 6.17.5.3 Limitações de Distância Fonte-a-Sujeito. A distância fonte-a-sujeito não deve ser menor que sete vezes a espessura de solda mais reforço, se houver, nem tal que a radiação de inspeção penetre qualquer parte da solda representada na radiografia a um ângulo maior que 26-1/2' a partir de uma linha normal à superfície da solda. 6.17.6 Fontes. Unidades de raio-X com máximo de 600kVp e irídio 192 podem ser usadas como uma fonte para todos os RT, contanto que tenham habilidade de penetração adequada. Cobalto 60 apenas deve ser usado como uma fonte radiográfica quando o aço sendo radiografada excede 2-1/2 [65 mm] em espessura. Outras fontes radiográficas podem ser usadas com a aprovação do Engenheiro. 6.17.7 Seleção e Colocação de IQI. IQIs devem ser selecionados e colocados na ligação soldada na área de interesse sendo radiografada, como mostrado na Tabela 6.6. Quando uma solda de cano circunferencial completa é radiografada com uma exposição única e a fonte de radiação é colocada no centro da curvatura, pelo menos três IQIs igualmente espaçados devem ser usados. Reforço de aço não deve ser considerado parte da solda ou reforço de solda na seleção IQI. 6.17.8 Técnica. Juntas soldadas devem ser radiografadas e o filme indexado por métodos que fornecerão inspeção contínua e completa da junta dentro dos limites especificados para serem examinados. Limites de junta devem ser mostrados claramente nas radiografias. Filme curto, tela curta, mordedura excessiva por radiação dispersada ou qualquer outro processo que obscureça partes do comprimento total da solda devem tornar a radiografia inaceitável. 6.17.8.1 Comprimento de Filme. O filme deve ter comprimento suficiente e deve ser colocado para fornecer pelo menos 1/2 in [12 mm] de filme além da aresta projetada da solda. 6.17.8.2 Filme Sobreposto. Soldas maiores que 14 in [350 mm] podem ser radiografadas por cassetes de filme sobreposto e fazendo uma única exposição, ou pelo uso de cassetes de filme único e fazendo exposições separadas. As provisões de 6.17.5.devem aplicar-se. 6.17.8.3 Retroespalhamento. Para verificar radiação de retroespalhamento, um símbolo de chumbo "B", com altura de 1/2 in [12 mm] e espessura de 1/16 in [2 mm] deve ser anexado a cada cassete de filme. Se a imagem "B" aparecer na radiografia, a radiografia deve ser considerada inaceitável. 6.17.9 Largura do Filme. Larguras de filme devem ser suficientes para representar partes da junta de solda, inclusive HAZs, e devem fornecer espaço adicional suficiente para os IQIs de tipo de orifício requeridos, ou IQI de arame, e identificação de filme sem infringir a área de interesse na radiografia. 6.17.10 Qualidade das Radiografias. Todas as radiografias devem ser livres de marcas mecânicas, químicas ou outras, na medida em que elas não podem mascarar ou ser confundidas com a imagem de qualquer descontinuidade na área de interesse da radiografia. Tais marcas incluem, entre outros, o seguinte: (1) embaçamento (2) defeitos de processamento como listas, marcas d'água ou manchas químicas (3) raspaduras, marcas de dedo, ondulações, sujeira, marcas estáticas, manchas ou rasgões (4) perda de detalhe devido a contato pobre tela-a- filme (5) falsas indicações devido a telas defeituosas ou falhas internas 6.17.11 Limitações de Densidade. A densidade de filme transmitida através da imagem radiográfica do corpo do IQI de tipo orifício requerido e a área de interesse devem ser 1,8 no mínimo para visão única para radiografias feitas com uma fonte de raio-x e 2,0 no mínimo para radiografias feitas com uma fonte de raio gama. Para visão composta de exposições de filme duplas, a densidade mínima deve ser 2,6. Cada radiografia de um conjunto composto deve ter uma densidade mínima de 1,3. A densidade máxima deve ser 4,0 para visualização composta ou única. 6.17.11.1 Densidade H & D. A densidade medida deve ser densidade H & D (densidade radiográfica), que é uma medida de escurecimento de filme, expressada como: D = log Io/I onde: D = Densidade (radiográfica) de H & D Io = Intensidade da luz no filme, e
  • 248.
    AWS D1.1/D1.1M:2010 6.INSPEÇÃO 228 I = luz transmitida através do filme. 6.17.11.2 Transições. Quando transições de espessura de solda são radiografadas e a proporção da espessura da seção mais grossa para a espessura da seção mais fina é 3 ou maior, a radiografia deveria ser exposta para produzir densidades de filma únicas de 3,0 a 4,0 na seção mais fina. Quando isso é feito, os requisitos de densidade mínima de 6.17.11 devem ser abandonados a manos que de outra forma estabelecido nos documentos de contrato. 6.17.12 Marcas de Identificação. Uma marca de identificação radiográfica e duas marcas de identificação de localização devem ser colocadas no aço a cada local radiográfico. Uma marca de identificação radiográfica correspondente e duas marcas de identificação de localização, sendo que todas devem ser mostradas na radiografia, devem ser produzidas pela colocação de números ou letras de chumbo, ou ambos, sobre cada uma das marcas de localização e identificação idênticas feitas no aço, para fornecer um meio de fazer corresponder a radiografia desenvolvida à solda. Informações de identificação adicionais devem ser pré-impressas a não menos que 3/4 in [20 mm] da aresta da solda ou devem ser produzidas na radiografia pela colocação de caracteres de chumbo no aço. Informações requeridas a serem mostradas na radiografia devem incluir a identificação de contrato do Proprietário, iniciais da empresa RT, iniciais do fabricante, o número do pedido na loja do fabricante, a marca de identificação radiográfica, a data e o número de reparo de solda, se aplicável. 6.17.13 Blocos de Aresta. Blocos de aresta devem ser usados quando radiografando soldas de topo com espessura maior que 1/2 [12 mm]. Os blocos de aresta devem ter um comprimento suficiente para estender-se além de cada lado da linha de centro da solda por uma distância mínima igual à espessura da solda, mas não menos que 2 in [50 mm], e deve ter uma espessura igual ou maior que a espessura da solda. A largura mínima dos blocos de aresta deve ser igual a metade da espessura da solda, mas não menos que 1 in [25 mm]. Os blocos de aresta devem ser centrados na solda contra a placa sendo radiografada, permitindo uma lacuna de não mais que 1/16 in [2 mm] para o comprimento mínimo específico dos blocos de aresta. Blocos de aresta devem ser feitos de aço radiograficamente limpo e a superfície deve ter um acabamento de 25 μin 3 μm da ANSI ou mais liso (ver Figura 6.12). 6.18 Requisitos RT Suplementares para Conexões Tubulares 6.18.1 Soldas em Chanfro Circunferenciais em Juntas de Topo. A técnica usada para radiografar juntas de topo circunferenciais deve ser capaz de cobrir toda a circunferência. A técnica deve ser preferencialmente exposição de parede única/visualização de parede única. Quando a acessibilidade ou o tamanho de cano proíbem isso, a técnica pode ser exposição de parede dupla/visualização de parede única ou exposição de parede dupla/visualização de parede dupla. 6.18.1.1. Exposição de Parede Única/Visualização de Parede Única. A fonte de radiação deve ser colocada dentro do cano e o filme no lado de fora do cano (ver Figura 6.13). Exposição panorâmica pode ser feita se os requisitos fonte-a-objeto forem satisfeitos; se não, o mínimo de três exposições deve ser feito. O IQI pode ser selecionado e colocado no lado da fonte no cano. Se não for praticável, pode ser colocado no lado do filme no cano. 6.18.1.2. Exposição de Parede Dupla/Visualização de Parede Única. Quando acesso ou condições geométricas proíbem exposição de parede única, a fonte pode ser colocada no lado de fora do cano e o filme na parede oposta do lado de fora do cano (ver Figura 6.14). Um mínimo de três exposições deve ser requerido para cobrir a circunferência completa. O IQI pode ser selecionado e colocado no lado do filme no cano. 6.18.1.3. Exposição de Parede Dupla/Visualização de Parede Dupla. Quando o diâmetro do lado de fora do cano é 3-1/2 in [90 mm] ou menor, ambas as soldas do lado da fonte e do lado do filme podem ser projetadas no filme e ambas as paredes visualizadas para aceitação. A fonte de radiação deve ser deslocada do cano por uma distância que é pelo menos sete vezes o diâmetro do lado de fora. O feixe de radiação deve ser deslocado do plano da linha de centro da solda a um ângulo suficiente para separar as imagens das soldas do lado da fonte e do lado do filme. Não deve haver sobreposição das duas zonas interpretadas. Um mínimo de duas exposições a 90º uma da outra deve ser requerido (ver Figura 6.15). A solda também pode ser radiografada pela sobreposição de duas soldas, caso em que deve haver um mínimo de três exposições a 60º uma da outra (ver Figura 6.16). Em cada uma dessas duas técnicas, o IQI deve ser colocado no lado da fonte no cano. 6.19 Exame, Relatório e Disposição de Radiografias 6.19.1 Equipamento Fornecido pelo Empreiteiro. O Empreiteiro deve fornecer um iluminador (visualizador) de intensidade variável adequado com capacidade de revisão de ponto ou ponto mascarado. O visualizador deve incorporar um meio de ajustar o tamanho do ponto sob exame. O visualizador deve ter capacidade suficiente para iluminar apropriadamente radiografias com densidade H & D de 4,0. Revisões de filme devem ser feitas em uma área de luz submetida. 6.19.2 Relatórios. Antes de uma solda sujeita a RT pelo Empreiteiro para o Proprietário ser aceita, todas as suas radiografias, inclusive qualquer uma que mostrar qualidade inaceitável antes de reparo, e um relatório interpretando-as devem ser submetidos ao Inspetor de Verificação. 6.19.3 Retenção de Relatório. Um conjunto completo de radiografias para soldas sujeitas a RT pelo Empreiteiro para o Proprietário, inclusive qualquer uma que mostre qualidade inaceitável antes de reparo, devem ser entregues ao Proprietário após a conclusão do trabalho. A obrigação do Empreiteiro de reter radiografias deve cessar: (1) após entrega desse conjunto completo para o Proprietário, ou (2)
  • 249.
    AWS D1.1/D1.1M:2010 6.INSPEÇÃO 229 um ano inteiro após a conclusão do trabalho do Empreiteiro, contanto que o Proprietário seja previamente avisado por escrito. Parte F Teste de Ultrassonografia (UT) de Soldas em Chanfro 6.20 Geral 6.20.1 Procedimentos e Padrões. Os procedimentos e padrões estabelecidos na Parte F devem governar o UT de soldas em chanfro e HAZs entre as espessuras de 5/16 in e 8 in [8 mm e 200 mm], quando tal teste é requerido por 6.14 deste código. Para espessuras menores que 5/16 in [8 mm] ou maiores que 8 in [200 mm], o teste deve ser realizado em conformidade com o Anexo S. Esses procedimentos e padrões devem ser proibidos para teste em conexões tubo-a-tubo em T-, Y- ou K-. 6.20.2 Variações. O Anexo S é um exemplo de uma técnica alternativa para realizar exame UT de soldas em chanfro. Variações em procedimento de teste, equipamento e padrões de aceitação não inclusas na Parte F da Cláusula 6 podem ser usadas com a aprovação do Engenheiro. Tais variações incluem outras espessuras, geometrias de solda, tamanhos de transdutor, frequências, pasta condutiva, superfícies pintadas, técnicas de teste, etc. Tais variações aprovadas devem ser registradas nos registros de contrato. 6.20.3 Porosidade de Encanamento. Para detectar porosidade de encanamento possível, RT é recomendado para suplementar UT de soldas ESW ou EGW. 6.20.4 Metal Base. Esses procedimentos não têm a intenção de serem empregados para o teste de aprovisionamento de metais base. No entanto, descontinuidades relacionadas com soldagem (trinca, ruptura lamelar, delaminações, etc.) no metal base adjacente que não seriam aceitáveis sob as provisões desse código devem ser relatadas ao Engenheiro para disposição. 6.21 Requisitos de Qualificação. Ao satisfazer os requisitos de 6.14.6, a qualificação do operador de UT deve incluir um exame específico e prático que deve ser baseado nos requisitos desse código. Esse exame deve requerer que o operador de UT demonstre habilidade para aplicar as regras desse código na detecção e disposição precisas de descontinuidades. 6.22 Equipamento UT 6.22.1 Requisitos UT. O instrumento UT deve ser do tipo eco pulso adequado para uso com transdutores oscilando a frequências entre 1 e 6 megahertz. O visor deve ser um rastro de vídeo retificado de escaneador "A". 6.22.2 Linearidade Horizontal. A linearidade horizontal do instrumento de teste deve ser qualificada sobre a distância do caminho de som completo a ser usado no teste em conformidade com 6.30.1. 6.22.3 Requisitos para Instrumentos de Teste. Instrumentos de teste devem incluir estabilização interna de forma que após aquecimento, nenhuma variação em resposta maior que ± 1 dB ocorra com uma modificação de fornecimento de voltagem nominal de 15% ou, no caso de uma bateria, ao longo da vida da carga de operação Deve haver um alarme ou medidor para sinalizar uma queda na voltagem da bateria antes do desligamento do instrumento devido a exaustão da bateria. 6.22.4 Calibragem de Instrumentos de Teste. Os instrumentos de teste devem ter um controle calibrado de ganho (atenuador) ajustável em etapas distintas de 1 ou 2 dB sobre uma faixa de pelo menos 60 dB. A precisão das configurações do atenuador deve ser dentro de 1 dB a mais ou a menos. O procedimento para qualificação deve ser como descrito em 6.24.2 e 6.30.2. 6.22.5 Faixa de Visor. A faixa dinâmica do visor do instrumento deve ser tal que uma diferença de 1 dB de amplitude possa ser facilmente detectada no visor. 6.22.6 Unidades de Busca de Feixe Direto (Onda Longitudinal). Transdutores de unidade de busca de feixe direto (onda longitudinal) devem ter uma área ativa de não menos que 1/2 in2 [323 mm2] e nem mais que 1 in2 [645 mm2]. O transdutor deve ser redondo ou quadrado. Transdutores devem ser capazes de resolver os três reflexos como descrito em 6.29.1.3. 6.22.7 Unidades de Busca de Feixe de Ângulo. Unidades de busca de feixe de ângulo devem consistir de um transdutor e uma cunha de ângulo. A unidade pode ser composta de dois elementos separados ou pode ser uma unidade integral. 6.22.7.1 Frequência. A frequência de transdutor deve ser entre 2 e 2,5 MHz, inclusive. 6.22.7.2 Dimensões de Transdutor. O cristal transdutor deve ser quadrado ou retangular na forma e pode variar de 5/8 a 1 in [15 mm a 25 mm] em largura e de 5/8 in a 13/16 in [15 mm a 20 mm] em altura (ver Figura 6.17). A proporção máxima de largura para altura deve ser 1,2 a 1,0, e a proporção mínima de largura para altura deve ser 1,0 a 1,0. 6.22.7.3 Ângulos. A unidade de busca deve produzir um feixe sonoro no material sendo testado com 2º a mais ou a menos de um dos seguintes ângulos apropriados: 70°, 60°, ou 45', como descrito em 6.29.2.2. 6.22.7.4 Marcação. Cada unidade de busca deve ser marcada para indicar claramente a frequência do transdutor, ângulo nominal de refração e ponto de índice. O procedimento de local de ponto de índice é descrito em 6.29.2.1.
  • 250.
    AWS D1.1/D1.1M:2010 6.INSPEÇÃO 230 6.22.7.5 Reflexos Internos. Os reflexos internos máximos permissíveis da unidade de busca devem ser como descrito em 6.24.3. 6.22.7.6 Distância da Aresta. As dimensões da unidade de busca devem ser tais que a distância do bordo de ataque da unidade de busca ao ponto de índice não deve exceder 1 in [25 mm]. 6.22.7.7 Bloco Tipo IIW. O procedimento de qualificação usando o bloco de referência IIW ou outro bloco tipo IIW deve estar em conformidade com 6.29.2.6 e como mostrado na Figura 6.18. 6.23 Padrões de Referência 6.23.1 Norma IIW. Qualquer dos blocos de referência tipo UT do Instituto Internacional de Soldagem (International Institute of Welding - IIW) pode ser usado como padrão para calibragem de distância e sensibilidade, contanto que o bloco inclua o orifício de diâmetro de 0,060 in [1,5 mm] como mostrado na Figura 6.19 e recursos de distância, resolução e verificação de ângulo da Figura 6.23 (posições de A a G). Blocos tipo IIW devem estar em conformidade com E 164 da ASTM. Outros blocos portáteis podem ser usados, contanto que o nível de referência de sensibilidade para a combinação instrumento/unidade de busca seja ajustado para ser equivalente àquele alcançado com o bloco tipo IIW (ver Anexo H para exemplos). 6.23.2 Refletores Proibidos. O uso de um refletor de "ângulo" para propósitos de calibragem deve ser proibido. 6.23.3 Requisitos de Resolução. A combinação de unidade e instrumento de busca deve resolver três orifícios no bloco de teste de referência de resolução RC mostrados na Figura 6.20. A posição de unidade de busca é descrita em 6.29.2.5. A resolução deve ser avaliada com os controles de instrumento estabelecidos em configurações normais de teste e com indicações a partir de orifícios trazidos à altura de meia tela. A resolução deve ser suficiente para distinguir pelo menos dois picos de indicações a partir dos três orifícios. O uso do bloco de referência de resolução RC para calibragens deve ser proibido. Cada combinação de instrumento de unidade de busca (sapata e transdutor) deve ser verificada antes de seu uso inicial. Essa verificação de equipamento deve ser feita inicialmente com a combinação de cada unidade de busca e unidade UT. A verificação não precisa ser feita novamente contanto que seja mantida documentação que registra os seguintes itens: (1) Fabricação, modelo e número de série da máquina de UT (2) Fabricante, tipo, tamanho, ângulo e número de série da unidade de busca. (3) Data de verificação e nome do técnico. 6.24 Qualificação de Equipamento 6.24.1 Linearidade Horizontal. A linearidade horizontal do instrumento de teste deve ser requalificada em intervalos de dois meses em cada uma das faixas de distância em que o instrumento será usado. O procedimento de qualificação deve estar em conformidade com 6.30.1 (ver Anexo H para método alternativo). 6.24.2 Controle de Ganho. O controle de ganho de instrumento (atenuador) deve atender os requisitos de 6.22.4 e deve ser verificado para calibragem correta em intervalos de dois meses em conformidade com 6.30.2. Métodos alternativos podem ser usados para qualificação de controle de ganho calibrado (atenuador) se provado que equivalente a pelo menos 6.30.2. 6.24.3 Reflexos Internos. Reflexos internos máximos de cada unidade de busca devem ser verificados a um intervalo máximo de tempo de 40 horas de uso de instrumento em conformidade com 6.30.3. 6.24.4 Calibragem de Unidades de Busca de Feixe de Ângulo. Com o uso de um bloco de calibragem aprovado, cada unidade de busca de feixe de ângulo deve ser verificada a cada oito horas de uso para determinar que a face de contato é plana, que o ponto de entrada de som é correto e que o feixe de ângulo está dentro da tolerância permitida de 2º a mais ou a menos em conformidade com 6.29.2.1 e 6.29.2.2. Unidades de busca que não atendem a esses requisitos devem ser corrigidas ou substituídas. 6.25 Calibragem para Teste 6.25.1 Posição de Controle de Rejeição. Todos os testes e calibragens devem ser feitos com o controle de rejeição (corte ou supressão) desligado. O uso do controle de rejeição (corte ou supressão) pode alterar a linearidade de amplitude do instrumento e invalidar resultados de teste. 6.25.2 Técnica. A Calibragem para varredura de sensibili- dade e horizontal (distância) deve ser feita pelo operador UT logo antes do teste e no local de teste de cada solda. 6.25.3 Recalibragem. A recalibragem deve ser feita após uma mudança de operadores, a cada intervalo máximo de tempo de duas horas, ou quando o circuito elétrico sofre distúrbios de qualquer forma que incluem os seguintes: (1) Mudança de transdutor (2) Mudança de bateria (3) Mudança de tomada elétrica (4) Mudança de cabo coaxial (5) Queda de energia (falha) 6.25.4 Teste de Feixe Direto em Metal Base. A calibragem para teste de feixe direto em metal base deve ser feita com a unidade de busca aplicada à Face A do metal base e realizada como segue: 6.25.4.1 Varredura. A varredura horizontal deve ser ajustada para calibragem de distância para apresentar o
  • 251.
    AWS D1.1/D1.1M:2010 6.INSPEÇÃO 231 equivalente de pelo menos duas espessuras de placa no visor. 6.25.4.2 Sensibilidade. A sensibilidade deve ser ajustada em um local livre de indicações de forma que o primeiro reflexo de retorno do lado mais distante da placa será 50% a 75% da altura total de tela. 6.25.5 Calibragem para Teste de Feixe de Ângulo. A calibragem para teste de feixe de ângulo deve ser realizada como segue (ver Anexos H, H2.4 para método alternativo). 6.25.5.1 Varredura Horizontal. A varredura horizontal deve ser ajustada para representar a distância real do caminho de som através do uso de blocos IIW ou blocos alternativos, como descrito em 6.23.1. A calibragem de distância deve ser feita usando a escala 5 in [125 mm] ou a escala 10 in [250 mm] no visor, a que for apropriada. Se, no entanto, a configuração ou espessura de junta impede o exame completo da solda em qualquer dessas configurações, a calibragem de distância deve ser feita usando as escalas 15 in ou 20 in [400 mm ou 500 mm], como requerido. A posição de unidade de busca é descrita em 6.29.2.3. OBSERVAÇÃO: A posição horizontal de todas as indicações de tela é baseada no local em que o lado esquerdo da deflexão de traço quebra a linha de base horizontal. 6.25.5.2 Nível de Referência Zero. A sensibilidade de nível de referência zero usada para avaliação de descontinuidade ("b" no relatório de teste de ultrassonografia, Anexo M, Formulário M-11) deve ser obtida pelo ajuste do controle de ganho calibrado (atenuador) do detector de descontinuidade, atendendo aos requisitos de 6.22, de forma que uma deflexão de traço maximizada (ajustada a altura de linha de referência horizontal com controle de ganho calibrado [atenuador]) resulte no visor entre 40% e 60% de altura de tela, em conformidade com 6.29.2.4. 6.26 Procedimentos de Teste 6.26.1 Linha "X". Uma linha "X" para local de descontinuidade deve ser marcada na face de teste da ligação soldada em uma direção paralela ao eixo da solda. A distância de local perpendicular ao eixo da solda deve ser baseada nas figuras dimensionais no desenho de detalhe e geralmente cai na linha de centro de soldas de junta de topo, e sempre cai na face próxima do membro conector de soldas de junta de ângulo e em T- (a face oposta à Face C). 6.26.2 Linha "Y". Um "Y" acompanhado de um número de identificação de solda deve ser claramente marcado no metal base adjacente à solda que está sujeita a UT. A marcação é usada para os seguintes propósitos: (1) Identificação de solda (2) Identificação da Face A (3) Medidas de distância e direção (+ ou -) da linha "X" (4) Medida de posição das extremidades ou arestas de solda 6.26.3 Limpeza. Todas as superfícies às quais uma unidade de busca é aplicada devem estar livres de respingo de solda, poeira, graxa, óleo (além do usado como pasta condutiva), tinta e oxidação e deve ter um contorno que permita acoplamento total. 6.26.4 Pastas condutivas. Um material do tipo pasta condutiva deve ser usado entre a unidade de busca e o material de teste. A pasta condutiva deve ser glicerina ou goma de celulose misturadas a água em uma consistência adequada. Um agente umidificador pode ser usado se necessário. Óleo de máquina leve pode ser usado como pasta condutiva em blocos de calibragem. 6.26.5 Extensão do Teste. Todo o metal base pelo qual a ultrassonografia precisa passar para testar a solda deve ser testado para refletores laminares usando uma unidade de busca de feixe direto em conformidade com os requisitos de 6.22.6 e calibrada em conformidade com 6.25.4. Se qualquer área do metal base exibir perda total de reflexo de retorno ou uma indicação igual ou maior que altura original de reflexo de retorno é localizada em uma posição que irá interferir no procedimento normal de escaneamento da solda, seu tamanho, local e profundidade da face A devem ser determinados e relatados no relatório UT, e um procedimento de escaneamento de solda alternativo deve ser usado. 6.26.5.1 Tamanho do Refletor. O procedimento de avaliação do tamanho do refletor deve estar em conformidade com 6.31.1. 6.26.5.2 Inacessibilidade. Se uma parte da solda é inacessível a teste em conformidade com os requisitos da Tabela 6.7, devido a conteúdo laminar registrado em conformidade com 6.26.5, o teste deve ser conduzido usando um ou mais dos seguintes procedimentos alternativos conforme necessário para obter cobertura total: (1) Superfícies de solda devem ser retificadas e niveladas em conformidade com 5.24.3.1. (2) Deve ser realizado o teste das Faces A e B. (3) Outros ângulos de unidade de busca devem ser usados. 6.26.6 Teste de Soldas. Soldas devem ser testadas usando uma unidade de busca de feixe de ângulo em conformidade com os requisitos de 6.22.7 com o instrumento calibrado em conformidade com 6.25.5 usando o ângulo como mostrado na Tabela 6.7. Em seguida à calibragem e durante o teste, o único ajuste de instrumento permitido é o ajuste de Nível de sensibilidade com o controle de ganho calibrado (atenuador). O controle de rejeição (corte ou supressão) deve estar desligado. A sensibilidade deve ser aumentada a partir do Nível de referência para escaneamento de solda em conformidade com as Tabelas 6.2 ou 6.3, conforme aplicável.
  • 252.
    AWS D1.1/D1.1M:2010 6.INSPEÇÃO 232 6.26.6.1 Escaneamento. O ângulo de teste e procedimento de escaneamento devem estar em conformidade com aqueles mostrados na Tabela 6.7. 6.26.6.2 Juntas de Topo. Todas as soldas de junta de topo devem ser testadas a partir de cada lado do eixo da solda. Soldas de junta de ângulo ou em T- devem ser primeiramente testadas a partir de apenas um lado do eixo da solda. Todas as soldas devem ser testadas usando o padrão (ou padrões) de escaneamento aplicável mostrado na Figura 6.21 conforme necessário para detectar descontinuidades longitudinais e transversais. A intenção é que, no mínimo, todas as soldas sejam testadas ao passar som através de todo o volume da solda e o HAZ em duas direções cruzadas, quando praticável. 6.26.6.3 Indicação Máxima. Quando uma indicação de descontinuidade aparece na tela, a indicação máxima a ser obtida de uma descontinuidade deve ser ajustada para produzir um Nível de referência horizontal de deflexão de traço no visor. Esse ajuste deve ser feito com o controle de ganho calibrado (atenuador), e a leitura do instrumento em decibéis deve ser usada como o “Nível de Indicação, a" para calcular a "Taxa de Indicação, d" como mostrado no relatório de teste (Anexo M, Formulário M-11). 6.26.6.4 Fator de Atenuação. O "Fator de Atenuação, c" no relatório de teste deve ser obtido ao subtrair 1 in [25 mm] da distância de caminho de som e multiplicar o restante por 2 para Unidades Convencionais dos EUA ou por 0,08 para Unidades SI. Esse fator deve ser arredondado para o valor dB mais próximo. Valores fracionais menores que 1/2 dB devem ser reduzidos para o Nível Db mais baixo e aqueles de 1/2 dB ou maiores aumentados para o Nível mais alto. 6.26.6.5 Taxa de Indicação. A "Taxa de Indicação, d" no Relatório UT, Anexo M, Formulário M-11 representa a diferença algébrica em decibéis entre o Nível de indicação e o Nível de referência com correção para atenuação como indicado nas seguintes expressões: Instrumentos com ganho em dB: a-b-c=d Instrumentos com atenuação em dB: b-a-c=d 6.26.7 Comprimento das Descontinuidades. O comprimento da descontinuidades deve ser determinado em conformidade com o procedimento descrito em 6.31.2. 6.26.8 Bases para Aceitação ou Rejeição. Cada descontinuidade de solda deve ser aceita ou rejeitada com base em sua taxa de indicação e seu comprimento, em conformidade com a Tabela 6.2 para estruturas estaticamente carregadas ou Tabela 6.3 para estruturas ciclicamente carregadas, o que for aplicável. Apenas as descontinuidades que são inaceitáveis precisam ser registradas no relatório de teste, exceto para soldas designadas nos documentos de contrato como sendo "Fratura Crítica", taxas aceitáveis que estão no âmbito de 6 dB, inclusive, da taxa mínima inaceitável devem ser registrados no relatório de teste. 6.26.9 Identificação de Área Rejeitada. Cada descontinuidade inaceitável deve ser indicada na solda por uma marca diretamente sobre a descontinuidade para todo seu comprimento. A profundidade a partir da superfície e taxa de indicação devem ser anotados em metal base próximo. 6.26.10 Reparo. Soldas consideradas inaceitáveis por UT devem ser reparadas por métodos permitidos por 5.26 desse código. Áreas reparadas devem ser testadas novamente com resultados tabulados no formulário original (se disponível) ou formulários de relatório adicionais. 6.26.11 Relatórios de Reteste. A avaliação de áreas de solda reparadas e testadas novamente devem ser tabuladas em uma nova linha no formulário de relatório. Se o formulário original for usado, um R1, R2... Rn, deve ser o prefixo do número de indicação. Se formulários de relatório adicionais forem usados, o R número deve ser prefixo do número de relatório. 6.26.12 Reforço de Aço. UT de soldas em chanfro CJP com reforço de aço devem ser realizados com um procedimento UT que reconhece refletores potenciais criados pela interface de reforço de metal base (ver Comentário C-6.26.12 para orientação adicional no escaneamento de soldas em chanfro contendo reforço de aço). 6.27 UT de Conexões Tubulares em T-, Y- e K-. 6.27.1 Procedimento. Todo Ut deve estar em conformidade com um procedimento escrito que tenha sido preparado ou aprovado por um indivíduo certificado como SNT-TC-IA, Nível III, e com experiência em UT de estruturas tubulares. O procedimento deve ser baseado nos requisitos dessa seção e da Cláusula 6, Parte F, conforme aplicável. O procedimento deve conter, no mínimo, as seguintes informações a respeito de métodos e técnicas UT. (1) O tipo de configuração de junta de solda a ser examinado (isto é, a faixa aplicável de diâmetro, espessura e ângulo diedro local). Técnicas convencionais são geralmente limitadas a diâmetros de 12-3/4 in [325 mm] ou mais, espessuras de 1/2 in [12 mm] e acima, e ângulos diedros locais de 30' ou maiores. Técnicas especiais para lados menores podem ser usadas, contanto que sejam qualificadas como descrito aqui, usando o menor lado de aplicação. (2) Critérios de aceitação para cada tipo e tamanho de solda (3) Tipo(s) de instrumentação UT (fabricação e modelo) (4) Frequência de transdutor (unidade de busca), tamanho e forma da área ativa, feixe de ângulo, e tipo de cunha em sonda de feixe de ângulo. Procedimentos usando
  • 253.
    AWS D1.1/D1.1M:2010 6.INSPEÇÃO 233 transdutores com frequências até 6 MHz, de tamanho até 1/4 in [6 mm], e de forma diferente da especificada em outra parte, podem ser usados, contanto que estejam qualificados conforme descrito aqui. (5) Preparação de superfície e pasta condutiva (quando usada) (6) Tipo de bloco de teste de calibragem e refletor de referência (7) Método de calibragem e precisão requerida para distância (varredura), linearidade vertical, distribuição do feixe, ângulo, sensibilidade e resolução. (8) Intervalo de calibragem para cada item de (7) acima. (9) Método para determinar continuidade acústica de metal base (ver 6.27.4) e para estabelecer geometria como uma função de ângulo diedro local e espessura (10) Padrão e sensibilidade de escaneamento (ver 6.27.5) (11) Correção de transferência para curvatura e rugosidade de superfície (quando métodos de amplitude são usados [ver 6.27.3]) (12) Métodos para determinar ângulo de feixe efetivo (em material curvo), área de raiz de indexação e locais de descontinuidade (13) Método de determinação de comprimento e altura de descontinuidade (14) Método de verificação de descontinuidade durante escavação e reparo 6.27.2 Equipe. Em acréscimo aos requisitos de equipe de 6.14.6, quando exame de conexões em T-, Y- e K- for realizado, deve ser requerido do operador que demonstre uma habilidade de aplicar as técnicas especiais requeridas para tal exame. Testes práticos para esse propósito devem ser realizados em soldas maquete que representem os tipos de soldas a serem inspecionadas, incluindo uma faixa representativa de ângulo diedro e espessura a serem encontrados na produção, usando os procedimentos qualificados e aprovados aplicáveis. Cada maquete deve conter descontinuidades naturais ou artificiais que produzam indicações UT acima e abaixo dos critérios de área rejeitada especificados no procedimento aprovado. O desempenho deve ser julgado com base na habilidade do operador para determinar o tamanho e classificação de cada descontinuidade com uma precisão requerida para aceitar ou rejeitar cada ligação soldada, e localizar precisamente as descontinuidades inaceitáveis ao longo da solda e na seção transversal da solda. Pelo menos 70% das descontinuidades inaceitáveis devem ser corretamente identificadas como inaceitáveis. Para trabalho em estruturas não redundantes, cada descontinuidade excedendo sua dimensão máxima aceitável em um fator ou dois, ou por uma amplitude de 6 dB, deve ser localizada e relatada. 6.27.3. Calibragem. A qualificação de equipamento e métodos de calibragem de Ut devem atender aos requisitos do procedimento aprovado e da Cláusula 6, Parte F, exceto como segue: 6.27.3.1 Faixa. A faixa (distância) de calibragem deve incluir, como mínimo, toda a distância de caminho de som a ser usada durante o exame específico. Isso pode ser ajustado para representar a viagem do caminho de som, a distância de superfície ou a profundidade equivalente abaixo da superfície de contato, como descrito no procedimento aprovado. 6.27.3.2 Calibragem de Sensibilidade. A sensibilidade padrão para exame de soldas de produção usando técnicas de amplitude deve ser: sensibilidade básica + correção de amplitude de distância + correção de transferência. Essa calibragem deve ser realizada pelo menos uma vez em cada junta a ser testada; exceto que, para teste repetitivo de mesmo tamanho e configuração, a frequência de calibragem de 6.25.3 pode ser usada. (1) Sensibilidade Básica. Altura de tela de nível de referência obtida usando reflexo máximo de diâmetro de orifício de 0,060 in [1,5 mm] no bloco IIW (ou outro bloco com resultados na mesma sensibilidade básica de calibragem) como descrito em 6.25 (ou 6.29). (2) Correção de Amplitude de Distância. O nível de sensibilidade deve ser ajustado para fornecer atenuação de perda através da faixa de caminho de som usada pelas curvas de correção de amplitude de distância, por meios eletrônicos ou como descrito em 6.26.6.4. Quando transdutores de alta frequência são usados, a maior atenuação deve ser levada em conta. Correção de transferência pode ser usada para acomodar UT através de camadas estreitas de tinta que não excedam 10 mils [0,25 mm] de espessura. 6.27.4 Exame de Metal Base. Toda a área sujeita a escaneamento UT deve ser examinada pela técnica de onda longitudinal para detectar refletores laminares que poderiam interferir na propagação direcionada de onda de som pretendida. Todas as áreas contendo refletores laminares devem ser marcadas para identificação antes do exame da solda, e as consequências consideradas na seleção de ângulos de unidade de busca e técnicas de escaneamento para exame das soldas naquela área. O Engenheiro deve ser notificado de descontinuidades de metal base que excedam os limites de 5.15.1.1. 6.27.5 Escaneamento de Solda. Escaneamento de solda de conexões em T-, Y- e K- deve ser realizado a partir da superfície do membro de ramificação (ver Figura 6.22). Todos os exames devem ser feitos nas pernas I e II, quando possível. Para escaneamento inicial, a sensibilidade deve ser aumentada em 12 dB acima do estabelecido em 6.27.3 para o caminho de som máximo. Avaliação de identificação deve ser realizada com referência ao padrão de sensibilidade. 6.27.6 Ângulo Ideal. Indicações encontradas nas áreas de raiz de soldas em chanfro em juntas de topo e ao longo da face de fusão de todas as soldas devem ser melhor
  • 254.
    AWS D1.1/D1.1M:2010 6.INSPEÇÃO 234 avaliadas com ângulo de busca de 70º, 60º ou 45º, o que for mais próximo de ser perpendicular à face de fusão esperada. 6.27.7 Avaliação de Descontinuidade. Descontinui-dades devem ser avaliadas pelo uso de uma combinação de limite de feixe e técnicas de amplitude. Devem ser dados tamanhos como comprimento e atura (dimensão de profundidade) ou amplitude, conforme aplicável. A amplitude deve ser relacionada a "calibragem padrão". Além disso, descontinuidades devem ser classificadas como lineares ou planares versus esféricas, pela observação da alterações em amplitude enquanto o transdutor é oscilado em um arco centrado no refletor. O local (posição) de descontinuidades na seção transversal da solda, assim como a partir de um ponto de referência estabelecido ao longo do eixo da solda, deve ser determinado. 6.27.8 Relatórios. 6.27.8.1 Formulários. Um formulário de relatório que identifica claramente o trabalho e a área de inspeção deve ser concluído pelo técnico de UT no momento da inspeção. Um relatório detalhado e um esboço mostrando o local ao longo do eixo da solda, local na seção transversal da solda, tamanho (ou taxa de indicação), extensão, orientação e classificação de cada descontinuidade deve ser concluído para cada solda em que indicações significativas foram encontradas. 6.27.8.2 Descontinuidades Relatadas. Quando especificado, descontinuidades que se aproximam de tamanho inaceitável, particularmente aquelas sobre as quais há alguma dúvida na avaliação, também devem ser relatadas. 6.27.8.3 Inspeção Incompleta. Áreas nas quais a inspeção completa não foi possível também devem ser observadas, assim como a razão pela qual a inspeção foi incompleta. 6.27.8.4 Marcas de Referência. A menos que de outra forma especificado, a posição de referência e o local e extensão de descontinuidades inaceitáveis também devem ser marcados fisicamente na peça. 6.28 Preparação e Disposição de Relatórios 6.28.1 Conteúdo dos Relatórios. da solda. Um exemplo de tal formulário é mostrado no Anexo M, Formulário M- 11. Um formulário de relatório que identifica claramente o trabalho e a área de inspeção deve ser concluído pelo operador de UT no momento da inspeção. O formulário de relatório para soldas que são inaceitáveis precisa apenas conter informações suficientes para identificar a solda, o operador (assinatura) e a aceitabilidade. 6.28.2 Relatórios Antes da Inspeção. Antes de uma solda sujeita a UT pelo Empreiteiro para o Proprietário ser aceita, todos os relatórios de formulários pertencendo à solda, inclusive qualquer que mostre qualidade inaceitável antes de reparo, devem ser submetidos ao Inspetor. 6.28.3 Relatórios Concluídos. Um conjunto completo de formulários de relatório de soldas sujeitas a UT pelo Empreiteiro para o Proprietário, inclusive qualquer uma que mostre qualidade inaceitável antes de reparo, devem ser entregues ao Proprietário após a conclusão do trabalho. A obrigação do Empreiteiro de manter relatórios de UT deve cessar:(1) após entrega desse conjunto completo para o Proprietário, ou (2) um ano inteiro após a conclusão do trabalho do Empreiteiro, contanto que o Proprietário seja previamente avisado por escrito. 6.29 Calibragem da unidade de UT com Blocos Tipo IIW ou Outros Blocos de Referência Aprovados (Anexo H). Ver 6.23 e Figuras 6.19, 6.20 e 6.23. 6.29.1 Modo Longitudinal 6.29.1.1 Calibragem de Distância. Ver Anexo H. H1 para método alternativo. (1) O transdutor deve ser colocado na posição G no bloco tipo IIW. (2) O instrumento deve ser ajustado para produzir indicações em 1 in [25 mm em um bloco métrico]. 2 in [50 mm em um bloco métrico]. 3 in [75 mm em um bloco métrico]. 4 in [100 mm em um bloco métrico]. Etc., no visor. 6.29.1.2 Amplitude. Ver Anexo H. H1.2 para Método alternativo. (1) O transdutor deve ser colocado na posição G no bloco tipo IIW. (2) O ganho deve ser ajustado até que a indicação maximizada do primeiro reflexo de retorno alcance 50 a 75% da altura de tela. 6.29.1.3 Resolução (1) O transdutor deve ser colocado na posição F no bloco IIW. (2) Transdutor e instrumento devem solucionar todas as três distâncias. 6.29.1.4 Qualificação de Linearidade Horizontal. O procedimento de qualificação deve ser por 6.24.1. 6.29.1.5 Qualificação de Controle de Ganho (Atenuação). O procedimento de qualificação deve estar em conformidade com 6.24.2, ou um método alternativo em conformidade com 6.24.2 deve ser usado. 6.29.2 Modo de Onda de Cisalhamento (Transversal) 6.29.2.1 Ponto de Índice. O ponto de entrada de som do transdutor (ponto de índice) deve ser localizado ou verificado pelo seguinte procedimento:
  • 255.
    AWS D1.1/D1.1M:2010 6.INSPEÇÃO 235 (1) O transdutor deve ser colocado na posição D no bloco tipo IIW. (2) O transdutor deve ser movido até que o sinal do raio esteja maximizado. O ponto no transdutor que se alinha com a linha de raio no bloco de calibragem é o ponto de entrada de som (ver Anexo H.H2.1 para Método alternativo). 6.29.2.2 Ângulo. O ângulo de caminho de som do transdutor deve ser verificado ou determinado por um dos seguintes procedimentos: (1) O transdutor deve ser colocado na posição B no bloco tipo IIW para ângulos de 40' a 60' ou na posição C no bloco IIW para ângulos de 60º a 70º (ver Figura 6.23). (2) Para o ângulo selecionado, o transdutor deve ser movido para a frente e para trás sobre a linha indicativa do ângulo transdutor até que o sinal do raio seja maximizado. O ponto de entrada no transdutor deve ser comparado com a marca de ângulo no bloco de calibragem (tolerância de ± 2º) (ver Anexo H. H2.2 para métodos alternativos). 6.29.2.3 Procedimento de Calibragem de Distância. O transdutor deve ser colocado na posição D em um bloco tipo IIW (qualquer ângulo). O instrumento deve ser então ajustado para alcançar uma indicação em 4 in [100 mm em um bloco métrico] e uma segunda indicação em 8 in [200 mm em um bloco métrico] ou 9 in [225 mm em um bloco métrico] (Ver Anexo H.H2.3 para Métodos alternativos). 6.29.2.4 Procedimento de Calibragem de Sensibilidade ou Amplitude. O transdutor deve ser colocado na posição A no bloco tipo IIW (qualquer ângulo). O sinal maximizado deve então ser ajustado a partir do orifício de 0,060 in [1,59 mm] para alcançar uma linha de referência horizontal de indicação de altura (ver Anexo H.H2.4 para Método alternativo). A leitura decibel máxima permitida deve ser usada como a leitura de "Nível de Referência b" na planilha de Relatório de Teste (Anexo M, Formulário M-11) em conformidade com 6.23.1. 6.29.2.5 Resolução (1) O transdutor deve ser colocado na posição Q do bloco RC para ângulo de 70º, posição R para ângulo de 60º ou posição S para ângulo de 45º. (2) Transdutor e instrumento devem solucionar os três orifícios de teste, pelo menos na extensão de distinguir os picos de indicações dos três orifícios. 6.29.2.6 Distância de Abordagem da Unidade de Busca. A distância mínima permissível entre a extremidade da unidade de busca e a aresta do bloco tipo IIW deve ser como segue (ver Figura 6.18): para transdutor de 70°, X= 2 in [50 mm] para transdutor de 60°, X= 1-7/16 in [37 mm] para transdutor de 45°, X= 1 in [25 mm] 6.30 Procedimentos de Qualificação de Equipamento 6.30.1 Procedimento de Linearidade Horizontal. OBSERVAÇÃO: Como esse procedimento de qualificação é realizado com uma unidade de busca de feixe direto que produz ondas longitudinais com uma velocidade de som que é quase o dobro de ondas de cisalhamento, é necessário dobrar as faixas de distância de onda de cisalhamento a serem usadas ao aplicar esse procedimento. Exemplo: O uso de uma calibragem de tela de 10 in [250 mm] em onda de cisalhamento requereria uma calibragem de tela de 20 in [500 mm] para esse procedimento de qualificação. O procedimento a seguir deve ser usado para qualificação de instrumento (ver Anexo H, H3, para método alternativo): (1) Uma unidade de busca de feixe direto deve ser acoplada atendendo os requisitos de 6.22.6 para o bloco tipo IIW ou bloco DS na Posição G, T ou U (ver Figura 6.23), conforme necessário para alcançar cinco reflexos de retorno na faixa de qualificação sendo certificada (ver Figura 6.23). (2) O primeiro e o quinto reflexos de retorno devem ser ajustados a seus próprios locais com uso da calibragem de distância e zero ajustes de atraso. (3) Cada indicação deve ser ajustada ao Nível de referência com o controle de ganho ou atenuação para exame local horizontal. (4) Cada local de deflexão de traço intermediário deve ser corrigida no âmbito de 2% da largura da tela. 6.30.2 Precisão de dB 6.30.2.1 Procedimento. OBSERVAÇÃO: Para atingir a precisão requerida ( ± 1%) na leitura da altura de indicação, o visor deve ser graduado verticalmente a intervalos de 2%, ou 2,5% para instrumento com leitura digital de amplitude, a altura horizontal de meia tela. Essas graduações devem ser colocadas no visor entre 60% e 100% da altura de tela. Isso pode ser alcançado com o uso de uma sobreposição de tela transparente graduada. Se essa sobreposição é aplicada como uma parte permanente da unidade UT, deveria ser tomado cuidado para que a camada não obscureça os visores normais de teste. (1) Uma unidade de busca de feixe direto deve ser acoplada atendendo aos requisitos de 6.22.6 para o bloco DS mostrado na Figura 6.20 e posição "T", Figura 6.23. (2) A calibragem de distância deve ser ajustada de forma que a primeira indicação de reflexo de retorno de 2 in [50 mm] (de agora em diante chamada de indicação) esteja na meia tela horizontal.
  • 256.
    AWS D1.1/D1.1M:2010 6.INSPEÇÃO 236 (3) O ganho calibrado ou controle de atenuação deve ser ajustado de forma que a indicação esteja exatamente em, ou levemente acima, de 40% de altura de tela. (4) A unidade de busca deve ser movida em direção à posição U, ver Figura 6.23, até que a indicação esteja exatamente em 40% da altura de tela. (5) A amplitude de som deve ser aumentada 6 dB com o ganho calibrado ou controle de atenuação. O nível de indicação teoricamente deveria ser exatamente em 80% da altura de tela. (6) A leitura dB deve ser registrada sob "a" e a % real de altura de tela sob "b" a partir da etapa 5 no relatório de certificação (Anexo M, Formulário M-8), Linha L. (7) A unidade de busca deve ser movida em direção à posição U, Figura 6.23, até que a indicação esteja exatamente em 40% da altura de tela. (8) A Etapa 5 deve ser repetida. (9) A Etapa 6 deve ser repetida; exceto que as informações deveriam ser aplicadas para a próxima linha consecutiva no Anexo M, Formulário M-8. (10) As Etapas 7, 8 e 9 devem ser repetidas consecutivamente até que a faixa completa do controle de ganho (atenuador) seja atingida (mínimo de 60 dB). (11) As informações das Fileiras "a" e "b" devem ser aplicadas à equação 6.30.2.2 ou o nomograma descrito em 6.30.2.3 para calcular o dB corrigido. (12) O dB corrigido da etapa 11 a Fileira "c" deve ser aplicado. (13) O valor da Fileira "c" deve ser subtraído do valor da Fileira "a" e a diferença na Fileira "d", erro dB, deve ser aplicada. OBSERVAÇÃO: Esses valores podem ser positivos ou negativos e assim anotados. Exemplos de Aplicação de Formulários M-8, M-9 e M-10 são encontrados no Anexo M. (14) As informações devem ser tabuladas em um formulário, incluindo informação mínima equivalente como exibido no Formulário M-8, e a unidade avaliada em conformidade com instruções mostradas naquele formulário. (15) O Formulário M-9 fornece um meio relativamente simples de avaliar dados do item (14). Instruções para essa avaliação são dadas de (16) a (18). (16) A informação dB da Fileira "e" (Formulário M-8) deve ser aplicada verticalmente e a leitura dB da Fileira "a" (Formulário M-8) horizontalmente como coordenadas X e Y para delinear a curva dB no Formulário M-9. (17) O comprimento horizontal mais longo, como representado pela diferença de leitura dB, que pode ser inscrito em um retângulo representando 2 dB em altura, denota a faixa dB na qual o equipamento atende aos requisitos do código. A faixa mínima permissível é 60 dB. (18) Equipamento que não atende a esse requisito mínimo pode ser usado, contanto que fatores de correção sejam desenvolvidos e usados para avaliação de descontinuidade fora da faixa de linearidade aceitável do instrumento, ou que o teste de solda e avaliação de descontinuidade sejam mantidos dentro da faixa de linearidade vertical aceitável do equipamento. OBSERVAÇÃO: Os números de erro dB (Fileira "d") podem ser usados como números de fator de correção. 6.30.2.2 Equação Decibel. A seguinte equação deve ser usada para calcular decibéis: dB2 - dB1 = dB2 = B1 Como relacionado no Anexo M, Formulário M-8. dB1 = Fileira "a" dB2 = Fileira "c" %1 = Fileira "b" %2 = Definida no Formulário M-8 6.30.2.3 Anexo M. As seguintes observações aplicam- se ao uso do nomograma no Anexo M, Formulário M-10: (1) Fileiras, b, c, d, e e estão na planilha de certificação, Anexo M, Formulário M-8. (2) As escalas A, B, e C estão no nomograma, Anexo M, Formulário M-10. (3) Os zero pontos na escala C devem ser prefixados ao adicionar o valor necessário para corresponder com as configurações do instrumento; isto é, 0, 10, 20, 30, etc. 6.30.2.4 Procedimento. Os seguintes procedimentos devem aplicar-se ao uso do nomograma no Anexo M, Formulário M-10: (1) Deve ser estendida uma linha direta entre a leitura de decibel da Fileira "a" aplicada à escala C e a percentagem correspondente da Fileira "b" aplicada à escala A. (2) O ponto em que a linha direta da etapa 1 cruza a linha pivô B como um ponto pivô para uma segunda linha direta deve ser usado. (3) Uma segunda linha direta a partir do ponto médio de % na escala A através do ponto pivô desenvolvido na etapa 2 e para a escala dB C deve ser estendida. (4) esse ponto na escala C é indicativo de dB corrigido para uso na Fileira "c". 6.30.2.5 Nomograma. Para um exemplo de uso do nomograma, ver Anexo M, Formulário M-10. 6.30.3 Procedimento de Reflexos Internos. (1) Calibrar o equipamento em conformidade com 6.25.5.
  • 257.
    AWS D1.1/D1.1M:2010 6.INSPEÇÃO 237 (2) Remover a unidade de busca do bloco de calibragem sem alterar qualquer outro ajuste de equipamento. (3) Aumentar o ganho calibrado ou atenuação a 20 dB mais sensível que o Nível de referência. (4) A área de tela além do caminho de som de 1/2 in [12 mm] e acima da altura de nível de referência deve ser livre de qualquer indicação. 6.31 Procedimentos de Avaliação de Tamanho de Descontinuidade 6.31.1 Teste de Feixe Direto (Longitudinal). O tamanho de descontinuidades lamelares não é sempre facilmente determinado, especialmente aqueles que são menores que o tamanho do transdutor. Quando a descontinuidade é maior que o transdutor, uma perda total de reflexo de retorno irá ocorrer e uma perda de 6 dB de amplitude e medida para a linha de centro do transdutor é geralmente confiável para determinar arestas de descontinuidade. No entanto, a avaliação de tamanho aproximado daqueles refletores, que são menores que o transdutor, deve ser feita começando do lado de fora da descontinuidade com equipamento calibrado em conformidade com 6.25.4 e movendo o transdutor em direção à área de descontinuidade até que comece a se formar uma indicação no visor. O bordo de ataque da unidade de busca nesse ponto é indicativo da aresta de descontinuidade. 6.31.2 Teste de Feixe de Ângulo (Cisalhamento). O procedimento a seguir deve ser usado para determinar comprimentos de indicações que têm taxas de dB mais sérias que uma indicação de Classe D. O comprimento de tal indicação deve ser determinado pela medida da distância entre os locais de linha de centro do transdutor em que a amplitude de taxa de indicação cai 50% (6 dB) abaixo da taxa para a classificação de descontinuidade aplicável. Esse comprimento deve ser registrado sob "comprimento de descontinuidade" no relatório de teste. Quando garantido pela amplitude da descontinuidade, esse procedimento deve ser repetido para determinar o comprimento das descontinuidades de Classe A, B e C 6.32 Padrões de Escaneamento (Ver Figura 6.21) 6.32.1 Descontinuidades Longitudinais 6.32.1.1 Movimento de Escaneamento A. Ângulo de rotação a= 10°. 6.32.1.2 Movimento de Escaneamento B. A distância de escaneamento b deve ser tal que a seção de solda sendo testada seja coberta. 6.32.1.3 Movimento de Escaneamento C. A distância de progressão c deve ser aproximadamente metade da largura do transdutor. OBSERVAÇÃO: Os movimentos A, E e C podem ser combinados em um padrão de escaneamento. 6.32.2 Descontinuidades Transversais 6.32.2.1 Soldas Retificadas. O padrão de escaneamento D deve ser usado quando as soldas são retificadas e niveladas. 6.32.2.2 Soldas Não Retificadas. O padrão de escaneamento E deve ser usado quando o reforço de solda não é retificado e nivelado. Ângulo de escaneamento e=15º máx. OBSERVAÇÃO: O padrão de escaneamento deve cobrir toda a seção de solda. 6.32.3 Soldas ESW ou EGW (Padrão de Escaneamento Adicional). Padrão de Escaneamento E, Ângulo de rotação da unidade de busca e entre 45º e 60º. OBSERVAÇÃO: O padrão de escaneamento deve cobrir toda a seção de solda. 6.33 Exemplos de Certificação de Precisão dB O Anexo M mostra exemplos do uso dos Formulários M-8, M-9 e M-10 para a solução para uma aplicação típica de 6.30.2. Parte G Outros Métodos de Exame 6.34 Requisitos Gerais Essa parte contém métodos NDT não abordados nas Partes D, E ou F da Cláusula 6 desse código. Os métodos NDT estabelecidos na Parte G podem ser usados como uma alternativa para os métodos esboçados nas Partes D, E ou F da Cláusula 6, contanto que os procedimentos, critérios de qualificação para procedimentos e equipe e critérios de aceitação sejam documentados por escrito e aprovados pelo Engenheiro. 6.35 Sistemas de Imagem por Radiação. O exame de soldas pode ser realizado usando métodos de radiação por ionização além de RT, como imagem eletrônica, inclusive sistemas de imagem em tempo real. A sensibilidade de tal exame como visto no sistema de monitoramento (quando usado para aceitação e rejeição) e a mídia de gravação não devem ser menores que o requerido para RT.
  • 258.
    AWS D1.1/D1.1M:2010 6.INSPEÇÃO 238 6.35.1 Procedimentos. Procedimentos por escrito devem conter as seguintes variáveis essenciais: (1) Identificação do equipamento incluindo fabricante, fabricação, modelo e número de série, (2) Configuração de controle de radiação e imagem para cada combinação de variáveis estabelecidas aqui, (3) Faixas de espessura da solda, (4) Tipos de junta da solda, (5) Velocidade de escaneamento, (6) Fonte de radiação para distância de solda, (7) Tela de conversão de imagem para distância de solda, (8) Ângulo de raios-X através da solda (a partir de normal), (9) Local IQI (lado da fonte ou lado da tela), (10) Tipo de mídia de gravação (gravação de vídeo, filme fotográfico, filme ou outras mídias aceitáveis), (11) Aprimoramento de computador (se usado), (12) Largura do feixe de radiação, (13) Protocolo e critérios de aceitação de caracterização de indicação, se diferentes desse código. 6.35.2 IQI. O tipo de arame IQI, como descrito na Parte B, deve ser usado. A colocação de IQI deve ser como especificado na Parte B para exame estático. Para exame em movimento, a colocação deve ser como segue: (1) Dois IQIs posicionados a cada extremidade de área de interesse e rastreados com a execução, (2) Um IQI em cada extremidade da execução e posicionado a uma distância não maior que 10 pés (3 m) entre quaisquer dois IQIs durante a execução. 6.36 Sistemas de Ultrassonografia Avançados Sistemas de Ultrassonografia Avançados incluem, entre outros, sonda múltipla, sistemas multicanais, inspeção automatizada, difração de tempo de vôo (TOFD), e sistemas de conjunto em fase. 6.36.1 Procedimentos. Procedimentos por escrito devem conter as seguintes variáveis essenciais: (1) Identificação do equipamento incluindo fabricante, fabricação, modelo e números de série, (2) Tipo de sondas, inclusive tamanho, forma e ângulo para conjuntos em fase: número de elementos transdutores por sonda, ângulo de feixe, distância focal, tamanho do ponto focal e frequência (MHz), (3) Configurações de controle de escaneamento para cada combinação de variáveis estabelecida aqui, (4) Procedimento de configuração e calibragem para equipamento e sondas usando padrões industriais ou amostras de mão-de-obra, (5) Faixas de espessura da solda, (6) Tipo de junta da solda, (7) Velocidades de escaneamento, (8) Número de sondas, (9) Ângulo de escaneamento, (10) Tipo de scan (A, B, C, outro) (11) Tipo de mídia de gravação (gravação de vídeo, assistida por computador ou outras mídias aceitáveis), (12) Aprimoramento com base em computador (se usado), (13) Identificação de software de computador (se usado), (14) Protocolo e critérios de aceitação de caracterização de indicação, se diferentes desse código. 6.37 Requisitos Adicionais. 6.37.1 Qualificação de Procedimento. Procedimentos devem ser qualificados pelo teste do método NDT (sistema) e da mídia de gravação para estabelecer e gravar todas as variáveis e condições essenciais. O teste de qualificação deve consistir de determinar que cada combinação das variáveis essenciais ou faixas de variáveis pode fornecer a sensibilidade mínima requerida. Os resultados de teste devem ser gravados na mídia de gravação que será usada para exame de produção. Os procedimentos devem ser aprovados por um indivíduo qualificado como SNT-TC-IA da ASNT, Nível III (ver 6.37.2). 6.37.2 Qualificações de Equipe. Além das qualificações de equipe de 6.14.6, o seguinte deve aplicar-se. (1) Nível III - deve ter um mínimo de seis meses de experiência usando o mesmo equipamento e procedimento, ou similar, para exame de soldas em materiais metálicos de encanamento ou estruturais. (2) Níveis l e II - deve ser certificado pelo Nível III acima e ter um mínimo de três meses de experiência usando o mesmo equipamento e procedimento, ou similar, para exame de soldas em materiais metálicos de cano ou estruturais. A qualificação deve consistir de exames práticos e escritos para demonstrar capacidade de usar o equipamento e procedimentos a serem usados para exame de produção. 6.37.3 Aprimoramento de Imagem. Aprimoramento computadorizado das imagens gravadas deve ser aceitável para melhorar a imagem gravada e obter informações adicionais, contanto que a sensibilidade e precisão mínimas
  • 259.
    AWS D1.1/D1.1M:2010 6.INSPEÇÃO 239 da caracterização de descontinuidades sejam mantidas. Imagens aprimoradas por computador devem ser claramente marcadas indicando que o aprimoramento foi usado e identificando os procedimentos de aprimoramento. 6.37.4 Registros- Exames de Radiação de Imagem. Exames, que são usados para aceitação e rejeição de soldas, devem ser registrados em uma mídia aceitável. Os registros devem ser em movimento ou estáticos, o que for usado para aceitar ou rejeitar soldas. Um registro escrito deve ser incluído com as imagens gravadas fornecendo as seguintes informações, no mínimo: (1) Identificação e descrição de soldas examinadas (2) Procedimento(s) usado(s) (3) Equipamento usado (4) Local das soldas na mídia de registro (5) Resultados, inclusive uma lista de soldas inaceitáveis e reparos, e suas localizações na mídia de registro.
  • 260.
    AWS D1.1/D1.1M:2010 6.INSPEÇÃO 240 Tabela 6.1 Critérios de Aceitação de Inspeção Visual (ver 6.9) Categoria de Descontinuidade e Critério de Inspeção Conexões Não Tubulares Estaticamente Carregadas Conexões Não Tubulares Ciclicamente Carregadas Conexões Tubulares (Todas as Cargas) (1) Proibição de Trinca Qualquer trinca deve ser inaceitável, a despeito do tamanho ou local X X X (2) Fusão de Metal Base/de Solda Deve existir fusão completa entre camadas adjacentes de metal de solda e entre metal de solda e metal base X X X (3) Seção Transversal de Cratera Todas as crateras devem ser preenchidas para fornecer o tamanho de solda especificado, exceto pelas extremidades de soldas de filete descontínuas fora de seu comprimento efetivo X X X (4) Perfis de Solda Perfis de solda devem estar em conformidade com 5 24 X X X (5) Tempo de lnspeção Inspeção visual de soldas em todos os aços pode começar imediatamente após as soldas finalizadas terem resfriado até a temperatura ambiente Critérios de aceitação para aços A 514, A 517, e A 709 Grau 100 e 100 W da ASTM devem ser baseados em inspeção visual realizada não menos que 48 horas após a finalização da solda X X X (6) Soldas de Tamanho Menor O tamanho de uma solda de filete em qualquer solda contínua pode ser menor que o tamanho nominal especificado (L) sem correção pelas seguintes quantias (U): X X X L, tamanho de solda nominal especificado, in [mm] ≤ 3/ 6 5 1/4 [6] ≥5 6 8 U, decréscimo permissível a partir de L, in [mm] ≤ / 6 2 ≤ 3/32 2 5 ≤ /8 3 Em todos os casos, a porção de tamanho menor da solda não deve exceder 10% do comprimento da solda Para soldas braçadeira-a-flange em traves, subutilização de capacidade deve ser proibida nas extremidades por um comprimento igual a duas vezes a largura da flange 7) Mordedura (A) Para material com espessura menor que 1 in [25 mm] , a mordedura não deve exceder 1/32 in [1 mm], com a seguinte exceção: a mordedura não deve exceder 1116 in [2 mm] para qualquer comprimento acumu1ado até 2 in [50 mm] em quaisquer 12 in [300 mm] Para material com espessura igual ou maior que 1 in [25 mm], a mordedura não deve exceder 1116 in [2 mm] para qualquer comprimento de solda X (B) Em membros primários, a mordedura não deve ser mais profunda que 0,01 in [0,25 mm] quando a solda é transversal à tensão de tração sob qualquer condição de projeto de carga A mordedura não deve ser mais profunda que 1132 in [1 mm] para todos os outros casos X X (8) Porosidade (A) Soldas em chanfro CJP em juntas de topo transversais à direção da tensão de tração computada não devem ter porosidade de cano visível Para todas as outras soldas em chanfro e para soldas de filete, a soma de porosidade de cano visível de diâmetro de 1/32 in [1 mm] ou maior não deve exceder 3/8 in [10 mm] em qualquer polegada linear de solda e não deve exceder 3/4 in [20 mm] em qualquer comprimento de solda de 12 in [300 mm] X (B) A frequência de porosidade de cano em soldas de filete não deve exceder uma em cada 4 in [100 mm] de comprimento de solda e o diâmetro máximo não deve exceder 3/32 in [2,5 mm] Exceção: para soldas de filete conectando reforços a braçadeira, a soma dos diâmetros de porosidade de cano não deve exceder 3/8 in [1O mm] em qualquer polegada linear de solda e não deve exceder 3/4 in [20 mm] em qualquer comprimento de solda de 12 in [300 mm] X X (C) Soldas em chanfro CJP em juntas de topo transversais à direção da tensão de tração computada não deve ter porosidade de cano Para todas as outras soldas em chanfro, a frequência de porosidade de cano não deve exceder uma em 4 in [100 mm] de comprimento e o diâmetro máximo não deve exceder 3/32 in [2,5 mm] X X Observação: Um "X" indica aplicabilidade para o tipo de conexão; uma área sombreada indica não aplicabilidade.
  • 261.
    AWS D1.1/D1.1M:2010 6.INSPEÇÃO 241 Tabela 6.2 Critérios de Aceitação -Rejeição UT (Conexões Não Tubulares Estaticamente Carregadas) (ver 6131 e C-6 26 6 ) Classe de Severidade da Descontinuidade Tamanho de Soldaa em polegadas [mm] e Ângulo da Unidade de Busca 5/16 a 3/4 [8–20] > 3/4 a 1-1/2 [20-38] > 1-1/2 a 2-1/2 [38-65] > 2-1/2 a 4 [65-100] > 4 a 8 [I 00-200] 70 70 70 60 45 70 60 45 70 60 45 Classe A +5 & abaixo +2 & abaixo -2 & abaixo +1 & abaixo +3 & abaixo -5 & abaixo -2 & abaixo 0 & abaixo -7 & abaixo -4 & baixo -1 & abaixo Classe B +6 +3 -1 0 +2 +3 +4 +5 -4 -3 -1 0 +1 +2 -6 -5 -3 -2 0 +1 Classe C +7 +4 +1 +2 +4 +5 +6 +7 –2 a +2 +1 +2 +3 +4 –4 a +2 –1 a +2 +2 +3 Classe D +8 & acima +5 & acima +3 & acima +6 & acima +8 & acima +3 & acima +3 & acima +5 & acima +3 & acima +3 & acima +4 & acima a O tamanho de solda em juntas de topo deve ser a espessura nominal da mais fina das duas partes sendo anexadas. Observações: 1. Descontinuidades de classe B e C devem ser separadas por pelo manos 2L, L sendo o comprimento da descontinuidade mais longa, exceto que quando duas ou mais de tais descontinuidades não estão separadas por pelo menos 2L, mas o comprimento combinado de descontinuidades e sua distância de separação é igual ou menor que o comprimento máximo permissível sob as provisões da Classe B ou C, a descontinuidade deve ser considerada uma descontinuidade única aceitável. 2. Descontinuidades de classe B e C não devem começar a uma distância menor que 2L das extremidades de solda carregando tensão de tração primária, L sendo o comprimento da descontinuidade. 3. Descontinuidades detectadas em “nível de varredura” na área de face de raiz de juntas de solda em chanfro duplo CJP devem ser avaliadas usando uma taxa de indicação 4 dB mais sensível que o descrito em 6.26.6.5 quando tais soldas são designadas como “soldas de tensão” no desenho (subtrair 4 dB da taxa de indicação “d”). Isso não deve aplicar-se se a junta de solda é goivada por trás a metal estável para remover a face de raiz e MT usados para verificar que a face de raiz foi removida. 4. ESW ou EGW: Descontinuidades detectadas em “nível de varredura” que excedam 2 in 5 mm em comprimento devem ser suspeitas de terem porosidade de cano e devem ser melhor avaliadas com radiografia. 5. Para indicações que permanecem na tela enquanto a unidade de busca é movida, consulte 6.13.1. Classe A (descontinuidades grandes) Qualquer indicação nessa categoria deve ser rejeitada (a despeito de comprimento). Níveis de Varredura Classe B (descontinuidades medianas) Qualquer indicação nessa categoria tendo um comprimento maior que 3/4 in [20 mm] deve ser rejeitada. Caminho estávelb em polegadas [mm] Acima de Zero Referência, dB Classe C (descontinuidades pequenas) Qualquer indicação nessa categoria tendo um comprimento maior que 2 in [50 mm] deve ser rejeitada. até 2-1/2 [65 mm] > 2-1/2 a 5 [65–125 mm] > 5 a 10 [125–250 mm] > 10 a 15 [250-380 mm] 14 19 29 39 Classe D (descontinuidades menores) Qualquer indicação nessa categoria deve ser aceita a despeito de comprimento ou local na solda. b Essa coluna refere-se a distância de caminho estável; NÃO espessura de material.
  • 262.
    AWS D1.1/D1.1M:2010 6.INSPEÇÃO 242 Tabela 6.3 Critérios de Aceitação-Rejeição UT (Conexões Não Tubulares Ciclicamente Carregadas) (ver 6.13.2 e C-6.26.6 ) Classe de Severidade da Descontinuidade Tamanho de Soldaa em polegadas [mm] e Ângulo da Unidade de Busca 5/16 até 3/4 [8-20] > 3/4 até 1-1/2 [20-38] > 1-1/2 até 2-1/2 [38-65] > 2-1/2 até 4 [65-100] > 4 até 8 [100-200] 70 70 70 60 45 70 60 45 70 60 45 Classe A +10 & abaixo +8 & abaixo +4 & abaixo +7 & abaixo +9 & abaixo +1 & abaixo +4 & abaixo +6 & abaixo -2 & abaixo +1 & abaixo +3 & abaixo Classe B +11 +9 +5 +6 +8 +9 +10 +11 +2 +3 +5 +6 +7 +8 -1 0 +2 +3 +4 +5 Classe C +12 +10 +7 +8 +10 +11 +12 +13 +4 +5 +7 +8 +9 +10 +1 +2 +4 +5 +6 +7 Classe D +13 & acima +11 & acima +9 & acima +12 & acima +14 & acima +6 & acima +9 & acima +11 & acima +3 & acima +6 & acima +8 & acima a O tamanho de solda em juntas de topo deve ser a espessura nominal da mais fina das duas partes sendo anexadas. Observações: 1. Descontinuidades de classe B e C devem ser separadas por pelo manos 2L, L sendo o comprimento da descontinuidade mais longa, exceto que quando duas ou mais de tais descontinuidades não estão separadas por pelo menos 2L, mas o comprimento combinado de descontinuidades e sua distância de separação é igual ou menor que o comprimento máximo permissível sob as provisões da Classe B ou C, a descontinuidade deve ser considerada uma descontinuidade única aceitável. 2. Descontinuidades de classe B e C não devem começar a uma distância menor que 2L das extremidades de solda carregando tensão de tração primária, L sendo o comprimento da descontinuidade. 3. Descontinuidades detectadas em “nível de varredura” na área de face de raiz de juntas de solda em chanfro duplo CJP devem ser avaliadas usando uma taxa de indicação 4 dB mais sensível que o descrito em 6.26.6.5 quando tais soldas são designadas como “soldas de tensão” no desenho (subtrair 4 dB da taxa de indicação “d”). Isso não deve aplicar-se se a junta de solda é goivada por trás a metal estável para remover a face de raiz e MT usados para verificar que a face de raiz foi removida. 4. Para indicações que permanecem na tela enquanto a unidade de busca é movida, consulte 6.13.2.1. Classe A (descontinuidades grandes) Qualquer indicação nessa categoria deve ser rejeitada (a despeito de comprimento). Níveis de Varredura Classe B (descontinuidades medianas) Qualquer indicação nessa categoria tendo um comprimento maior que 3/4 in [20 mm] deve ser rejeitada. Caminho estávelb em polegadas [mm] Acima de Zero Referência, dB Classe C (descontinuidades pequenas) Qualquer indicação nessa categoria tendo um comprimento maior que 2 in [50 mm] na metade ou comprimento de 3/4 in [20 mm] em um quarto do topo ou fundo da espessura de solda deve ser rejeitado. até 2-1/2 [65 mm] > 2-1/2 até 5 [65–125 mm] > 5 até 10 [125–250 mm] > 10 até 15 [250-380 mm] 20 25 35 45 Classe D (descontinuidades menores) Qualquer indicação nessa categoria deve ser aceita a despeito do comprimento ou local na solda b Essa coluna refere-se a distância de caminho estável; NÃO espessura de material. .
  • 263.
    AWS D1.1/D1.1M:2010 6.INSPEÇÃO 243 Tabela 6.4 Requisitos IQI de Tipo de Orifício (ver 6.17.1) Espessura Nominal de Materiala Faixa, in Espessura Nominal de Materiala Faixa, mm Lado Fonte Lado Filmeb Designação Orifício Essencial Designação Orifício Essencial Até 0,25 incl. Até 6 incl. 10 4T 7 4T Acima de 0,25 até 0,375 Acima de 6 até 10 12 4T 10 4T Acima de 0,375 até 0,50 Acima de 10 até 12 15 4T 12 4T Acima de 0,50 até 0,625 Acima de 12 até 16 15 4T 12 4T Acima de 0,625 até 0,75 Acima de 16 até 20 17 4T 15 4T Acima de 0,75 até 0,875 Acima de 20 até 22 20 4T 17 4T Acima de 0,875 até 1,00 Acima de 22 até 25 20 4T 17 4T Acima de 1,00 até 1,25 Acima de 25 até 32 25 4T 20 4T Acima de 1,25 até 1,50 Acima de 32 até 38 30 2T 25 2T Acima de 1,50 até 2,00 Acima de 38 até 50 35 2T 30 2T Acima de 2,00 até 2,50 Acima de 50 até 65 40 2T 35 2T Acima de 2,50 até 3,00 Acima de 65 até 75 45 2T 40 2T Acima de 3,00 até 4,00 Acima de 75 até 100 50 2T 45 2T Acima de 4,00 até 6,00 Acima de 100 até 150 60 2T 50 2T Acima de 6,00 até 8,00 Acima de 150 até 200 80 2T 60 2T a Espessura radiográfica de parede única (para tubulares). b Aplicável apenas a estruturas tubulares. Tabela 6.5 Requisitos IQI de Arame (ver 6.17.1) Espessura Material Nominala Faixa, in Espessura Material Nominala Faixa, mm Lado Fonte Diâmetro Máximo de Arame Lado Filmeb Diâmetro Máximo de Arame in mm in mm Até 0,25 incl. Até 6 incl. 0,010 0,25 0,008 0,20 Acima de 0,25 até 0,375 Acima de 6 até 10 0,013 0,33 0,010 0,25 Acima de 0,375 até 0,625 Acima de 10 até 16 0,016 0,41 0,013 0,33 Acima de 0,625 até 0,75 Acima de 16 até 20 0,020 0,51 0,016 0,41 Acima de 0,75 até 1,50 Acima de 20 até 38 0,025 0,63 0,020 0,51 Acima de 1,50 até 2,00 Acima de 38 até 50 0,032 0,81 0,025 0,63 Acima de 2,00 até 2,50 Acima de 50 até 65 0,040 1,02 0,032 0,81 Acima de 2,50 até 4,00 Acima de 65 até 100 0,050 1,27 0,040 1,02 Acima de 4,00 até 6,00 Acima de 100 até 150 0,063 1,60 0,050 1,27 Acima de 6,00 até 8,00 Acima de 150 até 200 0,100 2,54 0,063 1,60 a Espessura radiográfica de parede única (para tubulares). b Aplicável apenas a estruturas tubulares.
  • 264.
    AWS D1.1/D1.1M:2010 6.INSPEÇÃO 244 Tabela 6.6 Seleção e Colocação de IQI (ver 6.17.7) Tipos IQI Igual T ≥ in 25 mm L Igual T < 10 in [250 mm] L Desigual T ≥ in 25 mm L Desigual T < 10 in [250mm] L Orifício Arame Orifício Arame Orifício Arame Orifício Arame Número de IQIs Cano Periférico Não Tubular 2 2 3 3 1 1 3 3 3 2 3 3 2 1 3 3 Seleção Norma ASTM - Tabela Figuras E 1025 E747 6,4 6,5 6,8 E 1025 E 747 6,4 6,5 6,9 E 1025 E 747 6,4 6,5 6,10 E 1025 E747 6,4 6,5 6,11 T = Espessura nominal do metal base (T1 e T2 de Figuras). L = Comprimento da Solda na área de interesse de cada radiografia. Observação: T pode ser aumentado para fornecer a espessura de reforço de solda permissível contanto que calços sejam usados sob IQIs de orifício por 6.17.3.3.
  • 265.
    AWS D1.1/D1.1M:2010 6.INSPEÇÃO 245 Tabela 6.7 Ângulo de Teste (ver 6.26.5.2) Gráfico de Procedimento Espessura do Material, in [mm] Aplicação 5/16 [8] até 1-1/2 [38] > 1-1/2 [38] até 1-3/4 [45] > 1-3/4 [45] até 2-1/2 [60] > 2-1/2 [60] até 3-1/2 [90] > 3-1/2 [90] até 4-1/2 [110] > 4-1/2 [110] até 5 [130] > 5 [130] até 6-1/2 [160] > 6-1/2 [160] até 7 [180] >7 [180] até 8 [200] * * * * * * * * * Junta de Topo 1 O 1 F 1G ou 4 F 1G ou 5 F 6 ou 7 F 8 ou 10 F 9 ou 11 F 12 ou 13 F 12 F Junta em T 1 O 1 F ou XF 4 F ou XF 5 F ou XF 7 F ou XF 10 F ou XF 11 F ou XF 13 F ou XF — — Junta de Ângulo 1 O 1 F ou XF 1G ou 4 F ou XF 1G ou 5 F ou XF 6 ou 7 F ou XF 8 ou 10 F ou XF 9 ou 11 F ou XF 13 ou 14 F ou XF — — ESW/EGW Soldas 1 O 1 O 1G ou 4 1** 1G ou 4 P1 ou P3 6 ou 7 P3 11 ou 15 P3 11 ou 15 P3 11 ou 15 P3 11 ou 15** P3 Observações: 1. Quando possível, todos os exames devem ser feitos a partir da Face A e na Perna 1, a menos que de outra forma especificado nessa Tabela. 2. Áreas de raiz de juntas de solda em chanfro que têm reforço que não requer remoção por contrato devem ser testadas na Perna 1, quando possível, com a Face A sendo aquela oposta ao reforço. (Retificação da face de solda ou teste de faces de solda adicionais podem ser necessários para permitir a varredura completa da raiz de solda.) 3. Exames na Perna II ou III devem ser feitos apenas para satisfazer provisões dessa Tabela ou quando necessário para testar áreas de solda tornadas inacessíveis por uma superfície de solda não retificada, ou interferência com outras partes da ligação soldada, ou para atender aos requisitos de 6.26.6.2. 4. Um máximo de Perna III deve ser usado apenas quando a espessura ou geometria previne o escaneamento de áreas de solda completas e HAZs na Perna I ou Perna II. 5. Em soldas de tensão em estruturas ciclicamente carregadas, o quarto do topo da espessura deve ser testado com a perna final de som progredindo da Face B em direção à Face A, o quarto do fundo da espessura deve ser restado com a perna final de som progredindo da Face A em direção à Face B; isto é, o quarto do topo da espessura deve ser testado ou a partir da Face A na Perna II ou a partir da Face B na Perna I, conforme opção do Empreiteiro, a menos que especificado de outra forma nos documentos de contrato. 6. A face de solda indicada deve ser nivelada por retificação usando o procedimento 1G, 6, 8, 9, 12, 14 ou 15. A face A para ambos os membros conectados deve estar no mesmo plano. (ver legenda na próxima página)
  • 266.
    AWS D1.1/D1.1M:2010 6.INSPEÇÃO 246 Tabela 6.7 (Continuação) Ângulo de Teste (ver 6.26.5.2) Legenda: X — Verificação a partir da Face “C.” G — Retificar face de solda nivelada. O — Não requerido. Face A — a face do material a partir da qual o escaneamento é feito (em juntas em T- e de ângulo, seguir os esboços acima). Face B — oposta à face “A” (mesma placa). Face C — a face oposta à solda no membro conector ou em uma junta em T- ou de ângulo. * — Requerido apenas quando a exibição de indicação de altura de referência de descontinuidade é observada na interface de metal do metal base, enquanto buscando em nível de escaneamento com procedimentos primários selecionados da primeira coluna. ** — Usar calibragem de distância de tela de 15 in [400 mm] ou 20 in [500 mm]. P — Pitch and catch deve ser conduzido para maiores avaliações de descontinuidade em apenas metade da espessura do material apenas com transdutores de 45 ou 70 de igual especificação, ambos de frente para a solda. (Transdutores precisam ser seguros por um suporte para controlar o posicionamento - ver esboço). Calibragem de amplitude para pitch and catch é normalmente feita por calibragem de uma única unidade de busca. Quando é feita uma alteração para unidades de busca duais para inspeção pitch and catch, deveria haver asseguração de que essa calibragem não muda como um resultado de variáveis de instrumento. F — Indicações de interface de metal de metal base de solda devem ser melhor avaliadas com um transdutor de 70 , 60 ou 45 - o caminho de som que for mais próximo de ser perpendicular à superfície de fusão suspeitada. Legenda de Procedimento Área de Espessura de Solda N Topo Quarto Metade Metade Fundo Quarto 1 70 70 70 2 60 60 60 3 45 45 45 4 60 70 70 5 45 70 70 6 70 G A 70 60 7 60 B 70 60 8 70 G A 60 60 9 70 G A 60 45 10 60 B 60 60 11 45 B 70 ** 45 12 70 G A 45 70 G B 13 45 B 45 45 14 70 G A 45 45 15 70 G A 70 A B 70 G B
  • 267.
    AWS D1.1/D1.1M:2010 6.INSPEÇÃO 247 Legenda para as Figuras 6.1, 6.2, e 6.3 Dimensões de Descontinuidades B= Dimensão máxima permitida de uma descontinuidade radiografada. L= A maior dimensão de uma descontinuidade radiografada. L' = A maior dimensão de descontinuidades adjacentes. C= Liberação mínima medida ao longo do eixo longitudinal da solda entre arestas de descontinuidades de porosidade ou do tipo fusão (a maior das descontinuidades adjacentes governa), o intersecção. C1 =Distância mínima permitida entre a descontinuidade mais próxima e a aresta livre de uma placa ou tubular, ou a intersecção de uma solda longitudinal com uma solda periférica, medida em paralelo ao eixo de solda longitudinal. W= Dimensão menor de cada das descontinuidades adjacentes. Definições de Descontinuidades • Uma descontinuidade alongada deve ter a sua maior dimensão (L) 3 vezes maior que a menor dimensão. • Uma descontinuidade arredondada deve ter a sua maior dimensão (L) menor ou igual a 3 vezes a menor dimensão. • Um agrupamento deve ser definido como um grupo de descontinuidades não alinhadas, de tamanho aceitável, adjacentes individuais com espaçamento menor que o mínimo permitido (C) para a maior descontinuidade adjacente individual (L'), mas com a soma das maiores dimensões (L) de todas as descontinuidades no agrupamento igual ou menor que o tamanho de descontinuidade individual máximo permissível (B). Tais agrupamentos devem ser considerados como descontinuidades individuais de tamanho L para o propósito de avaliar o espaçamento mínimo. • Descontinuidades alinhadas devem ter os eixos principais de cada descontinuidade aproximadamente alinhados. Dimensões Materiais E= Tamanho da solda. T= Espessura da placa ou cano para soldas em chanfro CJP.
  • 268.
    AWS D1.1/D1.1M:2010 6.INSPEÇÃO 248 Notas 1 – Para determinar o tamanho máximo da descontinuidade permitida em qualquer junta ou tamanho da solda, projetar E horizontalmente sobre B. 2 – Para determinar o mínimo de folga permitida entre as arestas de descontinuidades de qualquer tamanho maior ou igual a 3/32 in [2,5 mm], projetar B verticalmente sobre C 3 – ver Legenda na página XXX para definições. Figura 6.1 – Critérios de Aceitação de Descontinuidade para Conexões Não Tubulares Estaticamente Carregadas e Conexões Tubulares Estaticamente ou Ciclicamente Carregadas (ver 6.12.1)
  • 269.
    AWS D1.1/D1.1M:2010 6.INSPEÇÃO 249 a A Descontinuidade alongada pode ser localizada quer na solda “A” ou na solda “B”. Para o propósito desta ilustração, a descontinuidade “B” foi localizada na solda “B”. Caso I – Descontinuidade na Intersecção da Solda Figura 6.1 (Continuação) – Critérios de Aceitação de Descontinuidade para Conexões Não Tubulares Estaticamente Carregadas e Conexões Tubulares Estaticamente ou Ciclicamente Carregadas (ver 6.12.1)
  • 270.
    AWS D1.1/D1.1M:2010 6.INSPEÇÃO 250 Caso II – Descontinuidade na Aresta Livre da Solda em Chanfro CJP Figura 6.1 (Continuação) – Critérios de Aceitação de Descontinuidade para Conexões Não Tubulares Estaticamente Carregadas e Conexões Tubulares Estaticamente ou Ciclicamente Carregadas (ver 6.12.1)
  • 271.
    AWS D1.1/D1.1M:2010 6.INSPEÇÃO 251 Caso III – Descontinuidade na Intersecção da Solda Figura 6.1 (Continuação) – Critérios de Aceitação de Descontinuidade para Conexões Não Tubulares Estaticamente Carregadas e Conexões Tubulares Estaticamente ou Ciclicamente Carregadas (ver 6.12.1)
  • 272.
    AWS D1.1/D1.1M:2010 6.INSPEÇÃO 252 Caso IV – Descontinuidade na Aresta Livre da Solda em Chanfro CJP Figura 6.1 (Continuação) – Critérios de Aceitação de Descontinuidade para Conexões Não Tubulares Estaticamente Carregadas e Conexões Tubulares Estaticamente ou Ciclicamente Carregadas (ver 6.12.1)
  • 273.
    AWS D1.1/D1.1M:2010 6.INSPEÇÃO 253 Notas 1. Para determinar o tamanho máximo da descontinuidade permitida em qualquer junta ou tamanho da solda, projetar E horizontalmente sobre B. 2. Para determinar o mínimo de folga permitida entre as arestas de descontinuidades de qualquer tamanho, projetar B verticalmente sobre C 3. ver Legenda na página 55 para definições. Figura 6.2 – Critérios de Aceitação de Descontinuidade para Conexões Não Tubulares Ciclicamente Carregadas em Tensão (Limitações de Porosidade e Descontinuidades de Fusão) (ver 6.12.2.1)
  • 274.
    AWS D1.1/D1.1M:2010 6.INSPEÇÃO 254 Caso I – Descontinuidade na Intersecção da Solda Figura 6.2 (Continuação)– Critérios de Aceitação de Descontinuidade para Conexões Não Tubulares Ciclicamente Carregadas em Tensão (Limitações de Porosidade e Descontinuidades de Fusão) (ver 6.12.2.1)
  • 275.
    AWS D1.1/D1.1M:2010 6.INSPEÇÃO 255 Caso II - Descontinuidade na Aresta Livre da Solda em Chanfro CJP Figura 6.2 (Continuação) - Critérios de Aceitação de Descontinuidade para Conexões Não Tubulares Ciclicamente Carregadas em Tensão (Limitações de Porosidade e Descontinuidades de Fusão) (ver 6.12.2.1)
  • 276.
    AWS D1.1/D1.1M:2010 6.INSPEÇÃO 256 Caso III – Descontinuidade na Intersecção da Solda Figura 6.2 (Continuação)– Critérios de Aceitação de Descontinuidade para Conexões Não Tubulares Ciclicamente Carregadas em Tensão (Limitações de Porosidade e Descontinuidades de Fusão) (ver 6.12.2.1)
  • 277.
    AWS D1.1/D1.1M:2010 6.INSPEÇÃO 257 Caso IV - Descontinuidade na Aresta Livre da Solda em Chanfro CJP Figura 6.2 (Continuação)– Critérios de Aceitação de Descontinuidade para Conexões Não Tubulares Ciclicamente Carregadas em Tensão (Limitações de Porosidade e Descontinuidades de Fusão) (ver 6.12.2.1)
  • 278.
    AWS D1.1/D1.1M:2010 6.INSPEÇÃO 258 a O tamanho máximo de uma descontinuidade localizada no âmbito dessa distância de uma aresta ou placa deve ser 1/8 in [3 mm], mas uma descontinuidade de 1/8 in [3 mm] deve ser 1/4 in [6 mm] ou mais distante da aresta. A soma de descontinuidades menores que 1/8 in [3 mm] em tamanho e localizadas no âmbito dessa distância da aresta não deve exceder 3/16 in [5 mm]. Descontinuidades de 1/16 in [2 mm] a menos de 1/8 in [3 mm] não devem ser restritas em outros locais a menos que estejam separadas por menos de 2 L (L sendo o comprimento da maior descontinuidade); caso em que as descontinuidades devem ser medidas como um comprimento igual ao comprimento total das descontinuidades e espaço e avaliadas como mostrado nessa figura. Notas 1. Para determinar o tamanho máximo da descontinuidade permitida em qualquer junta ou tamanho da solda, projetar E horizontalmente sobre B. 2. Para determinar o mínimo de folga permitida entre as arestas de descontinuidades de qualquer tamanho, projetar B verticalmente sobre C 3. ver Legenda na página 55 para definições. Figura 6.3 – Critérios de Aceitação de Descontinuidade para Conexões Não Tubulares em Compressão (Limitações de Porosidade ou Descontinuidades do
  • 279.
    AWS D1.1/D1.1M:2010 6.INSPEÇÃO 259 Tipo Fusão) (ver 6.12.2.2) Caso I - Descontinuidade na Intersecção da Solda Figura 6.3 (Continuação) – Critérios de Aceitação de Descontinuidade para Conexões Não Tubulares em Compressão (Limitações de Porosidade e Descontinuidades do Tipo Fusão) (ver 6.12.2.2)
  • 280.
    AWS D1.1/D1.1M:2010 6.INSPEÇÃO 260 Caso II - Descontinuidade na Aresta Livre da Solda em Chanfro CJP Figura 6.3 (Continuação) – Critérios de Aceitação de Descontinuidade para Conexões Não Tubulares em Compressão (Limitações de Porosidade ou Descontinuidades do Tipo Fusão) (ver 6.12.2.2)
  • 281.
    AWS D1.1/D1.1M:2010 6.INSPEÇÃO 261 Caso III - Descontinuidade na Intersecção da Solda Figura 6.3 (Continuação) – Critérios de Aceitação de Descontinuidade para Conexões Não Tubulares em Compressão (Limitações de Porosidade ou Descontinuidades do Tipo Fusão) (ver 6.12.2.2)
  • 282.
    AWS D1.1/D1.1M:2010 6.INSPEÇÃO 262 Caso IV – Descontinuidades no âmbito de 5/8 in [16 mm] em uma Aresta Livre Caso V – Descontinuidades Separadas por Menos de 2L em Qualquer Local da Solda (Usar Gráfico da Dimensão “B” da Figura 6.3 para Falha Única) Figura 6.3 (Continuação) – Critérios de Aceitação de Descontinuidade para Conexões Não Tubulares em Compressão (Limitações de Porosidade ou Descontinuidades do Tipo Fusão) (ver 6.12.2.2)
  • 283.
    AWS D1.1/D1.1M:2010 6.INSPEÇÃO 263 a Refletores internos lineares ou planares acima do padrão de sensibilidade (exceto raiz de conexões únicas soldadas em T-, Y-, e K- [ver Figura 6.5]). b Refletores menores (acima do nível de desconsideração e incluindo padrão de sens bilidade (exceto raiz de conexões únicas soldadas em T-, Y-, e K- [ver Figura 6.5]). Refletores adjacentes separados por menos do que seu comprimento médio devem ser tratados como contínuos. Figura 6.4 – Indicações da Classe R (ver 6.13.3.1)
  • 284.
    AWS D1.1/D1.1M:2010 6.INSPEÇÃO 264 a Descontinuidades de área de raiz que caiam fora da solda teórica (dimensões “tw” ou “L” nas Figuras 3.8, 3.9, e 3.10) devem ser desconsideradas. Figura 6.4 (Continuação) - Indicações da Classe R (ver 6.13.3.1)
  • 285.
    AWS D1.1/D1.1M:2010 6.INSPEÇÃO 265 Observações: 1. Descontinuidades alinhadas separadas por menos de (L1+L2)/2 e descontinuidades paralelas separadas por menos de (H1+H2)/2 devem ser avaliadas como contínuas. 2. Descontinuidades acumulativas devem ser avaliadas sobre comprimento da solda de 6 in [150 mm] ou D/2 (o que for menor), onde o diâmetro do tubo =D. DESCONTINUIDADES DE RAIZ K-, Y-, E T- Observações: 1. Para solda CJP em conexões tubulares únicas soldadas em T,Y e Y feitas sem reforço. 2. Descontinuidades em soldagem de backup na raiz, Detalhes C e D das Figuras 3.8, 3.9, e 3.10 deverão ser desconsideradas REFLETORES INTERNOS E TODAS OUTRAS SOLDAS a Refletores abaixo da sensibilidade padrão (ver 6.13.3.2) deverão ser desconsideradas. Observação: Descontinuidades que estão entre H ou tw/6 da superfície externa deverão ser dimensionadas como se se estendessem à superfície da solda. Figura 6.5 – Indicações da Classe X (ver 6.13.3.2)
  • 286.
    AWS D1.1/D1.1M:2010 6.INSPEÇÃO 266 Tabela de Dimensões de IQI (in) Númeroa A B C D E F Tolerâncias de Espessura e do Diâmetro do Orifício de IQI 5–20 1,500 ± 0,015 0,750 ± 0,015 0,438 ± 0,015 0,250 ± 0,015 0,500 ± 0,015 0,250 ± 0,030 ± 0,0005 21–59 1,500 ± 0,015 0,750 ± 0,015 0,438 ± 0,015 0,250 ± 0,015 0,500 ± 0,015 0,250 ± 0,030 ± 0,0025 60–179 2,250 ± 0,030 1,375 ± 0,030 0,750 ± 0,030 0,375 ± 0,030 1,000 ± 0,030 0,375 ± 0,030 ± 0,005 Tabela de Dimensões de IQI (mm) Númeroa A B C D E F Tolerâncias de Espessura e do Diâmetro do Orifício de IQI 5–20 38,10 ± 0,38 19,05 ± 0,38 11,13 ± 0,38 6,35 ± 0,38 12,70 ± 0,38 6,35 ± 0,80 ± 0,013 21–59 38,10 ± 0,38 19,05 ± 0,38 11,13 ± 0,38 6,35 ± 0,38 12,70 ± 0,38 6,35 ± 0,80 ± 0,06 60–179 57,15 ± 0,80 34,92 ± 0,80 19,05 ± 0,80 9,52 ± 0,80 25,40 ± 0,80 9,525 ± 0,80 ± 0,13 a IQIs No. 5 até 9 não são 1T, 2T, e 4T. Nota: Orifícios devem ser verdadeiros e normais para IQI. Não chanfrar. Figura 6.6 – IQI Tipo Orifício (ver 6.17.1) (Reimpresso com permissão da American Society for Testing and Materials, copyright.)
  • 287.
    AWS D1.1/D1.1M:2010 6.INSPEÇÃO 267 Tamanhos da Imagem Indicadora de Qualidade (Penetrâmetro de Arame) Diâmetro de Arame, in [mm] Posição A Posição B Posição C Posição D 0,0032 [0,08] 0,010 [0,25] 0,032 [0,81] 0,10 [2,5] 0,004 [0,1] 0,013 [0,33] 0,040 [1,02] 0,125 [3,2] 0,005 [0,13] 0,016 [0,4] 0,050 [1,27] 0,160 [4,06] 0,0063 [0,16] 0,020 [0,51] 0,063 [1,6] 0,20 [5,1] 0,008 [0,2] 0,025 [0,64] 0,080 [2,03] 0,25 [6,4] 0,010 [0,25] 0,032 [0,81] 0,100 [2,5] 0,32 [8] Figura 6.7—IQI de Arame (ver 6.17.1) (Reimpresso com permissão da American Society for Testing and Materials, copyright.)
  • 288.
    AWS D1.1/D1.1M:2010 6.INSPEÇÃO 268 a Colocação alternada IQI do lado da fonte permitida para aplicações tubulares e outras aplicaçãoes quando aprovadas pelo Engenheiro. Figura 6.8—Identificação RT e Locais de Tipo-Orifício ou IQI de Arame em Juntas de Espessura Aproximadamene Igual a 10 in [250 mm] e Maiores em Comprimento (ver 6.17.7)
  • 289.
    AWS D1.1/D1.1M:2010 6.INSPEÇÃO 269 a Colocação alternada IQI do lado da fonte permitida para aplicações tubulares e outras aplicaçãoes quando aprovadas pelo Engenheiro. Figura 6.9—Identificação RT e Locais de Tipo-Orifício ou IQI de Arame em Juntas de Espessura Aproximadamene Igual ou menores que 10 in [250 mm] em Comprimento (ver 6.17.7)
  • 290.
    AWS D1.1/D1.1M:2010 6.INSPEÇÃO 270 a Colocação alternada IQI do lado da fonte permitida para aplicações tubulares e outras aplicaçãoes quando aprovadas pelo Engenheiro. Figura 6.10—Identificação RT e Locais de Tipo-Orifício ou IQI de Arame em Juntas de Transição de 10 in [250 mm] e Maiores em Comprimento (ver 6.17.7)
  • 291.
    AWS D1.1/D1.1M:2010 6.INSPEÇÃO 271 a Colocação alternada IQI do lado da fonte permitida para aplicações tubulares e outras aplicaçãoes quando aprovadas pelo Engenheiro. Figura 6.11—Identificação RT e Locais de Tipo-Orifício ou IQI de Arame em Juntas de Espessura menores que 10 in [250 mm] em Comprimento (ver 6.17.7) Figura 6.12 – Blocos de Aresta RT (ver 6.17.13)
  • 292.
    AWS D1.1/D1.1M:2010 6.INSPEÇÃO 272 Figura 6.13 – Exposição de Parede Única – Vista de Parede Única (ver 6.18.1.1) Figura 6.14 – Exposição de Parede Dupla – Vista de Parede Única (ver 6.18.1.2)
  • 293.
    AWS D1.1/D1.1M:2010 6.INSPEÇÃO 273 Figura 6.15 – Exposição de Parede Dupla – Vista de Parede Dupla (Elíptica), Mínimo de Duas Exposições (ver 6.18.1.2) Figura 6.16 – Exposição de Parede Dupla – Vista de Parede Dupla (Elíptica), Mínimo de Três Exposições (ver 6.18.1.3)
  • 294.
    AWS D1.1/D1.1M:2010 6.INSPEÇÃO 274 Figura 6.17- Cristal Transdutor (ver 6.22.7.2) Figura 6.18 – Procedimento de Qualificação da Unidade de Busca Usando Bloco de Referência IIW (ver 6.22.7.7)
  • 295.
    AWS D1.1/D1.1M:2010 6.INSPEÇÃO 275 Observações 1. A tolerância dimensional entre todas as superfícies no referenciamento ou calibração deverá estar entre ±0,005 in [0,13 mm] da dimensão detalhada. 2. O acabamento da superfície de todas as superfícies para os quais o som é aplicado ou refletido deve ter uma máximo de 125 μ in [3.17 μ m] r.m.s. 3. Todo material deve ser ASTMA 36 ou acousticamente equivalente. 4. Todos orifícios deverão ter um acabamento interno suave e deverão ser perfurados a 90º da superfície do material. 5. Marcadores de identificação e linhas de grau deverão ser identadas na superfície do material para que se mantenha uma orientação permananente. 6. Estas notas aplicam-se a todos os esboços nas Figuras 6.19 e 6.20. Figura 6.19 – Bloco Típico do Tipo IWW (ver 6.23.1)
  • 296.
    AWS D1.1/D1.1M:2010 6.INSPEÇÃO 276 Figura 6.20 - Blocos de Qualificação (ver 6.23.3)
  • 297.
    AWS D1.1/D1.1M:2010 6.INSPEÇÃO 277 Figura 6.20 (Continuação) – Blocos de Qualificação (ver 6.23.3) (Métrico)
  • 298.
    AWS D1.1/D1.1M:2010 6.INSPEÇÃO 278 Observações: 1. Padrões de teste são todos simétricos em torno do eixo da solda, com exceção do padrão D, que deve ser conduzido diretamente sobre o eixo da solda. 2. Testes de ambos os lados do eixo da solda deverão ser feitos onde for mecanicamente possível. Figura 6.21 – Visão de Plano de Padrões de Escaneamento UT (ver 6.32)
  • 299.
    AWS D1.1/D1.1M:2010 6.INSPEÇÃO 279 Figura 6.22 – Técnicas de Escaneamento (ver 6.27.5)
  • 300.
    AWS D1.1/D1.1M:2010 6.INSPEÇÃO 280 Figura 6.23 – Posições do Transdutor (Típico) (ver 6.29)
  • 301.
  • 302.
    AWS D1.1/D1.1M:2010 282 7. Soldagemde Pinos 7.1 Escopo A cláusula 7 contém os requisitos gerais para a soldagem de pinos de aço em aço e estabelece requisitos específicos: (1) Para as propriedades mecânicas e materiais de pinos de aço e requisitos para a qualificação das bases de pinos; (2) Para os testes de qualificação de aplicação, qualificação do operador, testes de pré-produção e mão de obra; (3) Para a soldagem do pino durante a produção, fabricação, montagem e inspeção. (4) Para a certificação do fabricante do pino de soldabilidade da base de pino. NOTA: Aços aprovados; para pinos, ver 7.2.6; para metais de base, ver Tabela 3.1 (Grupos I e II). Para orientações, ver C7.6.1. 7.2 Requisitos gerais 7.2.1 Projeto do pino. O projeto dos pinos deve ser adequado para soldagem a arco a peças de aço com uso de equipamento de soldagem de pino cronometrado. O tipo e o tamanho do pino devem ser os especificados pelos desenhos, especificações ou disposições especiais. Para pinos com cabeça, ver Figura 7.1. Podem ser usadas configurações de cabeçote alternativas, mediante comprovação de testes mecânicos e encaixe que confirmem o desenvolvimento da força total do projeto e mediante aprovação do Engenheiro. 7.2.2 Proteções para arcos. Uma proteção para arcos (virola) de cerâmica resistente a calor ou outro material adequado deve ser fornecida com cada pino. 7.2.3 Fluxo. Um desoxidante adequado e um fluxo de estabilização para soldagem a arco devem ser fornecidos com cada pino de 5/16 in [8 mm] de diâmetro ou maior. Pinos menores que 5/16 in [8 mm] de diâmetro podem ser fornecidos com ou sem fluxo. 7.2.4 Bases de pinos. Uma base de pino, para ser qualificada, deverá ter sido aprovada no teste descrito em 7.9. Deverão ser utilizados apenas pinos com bases qualificadas. A classificação das bases de pinos em conformidade com 7.9 deve ficar a cargo do fabricante. A proteção para arcos utilizada na produção deve ser a mesma utilizada em testes de qualificação ou como recomendado pelo fabricante. Quando solicitado pelo engenheiro, o contratante deverá fornecer as seguintes informações: (1) Uma descrição do pino e da proteção para arcos (2) Certificação do fabricante de que a base do pino foi classificada em conformidade com 7.9. (3) Dados de testes de qualificação 7.2.5 Acabamento do pino. 7.2.5.1 O acabamento do pino deve ser feito por recalcamento da cabeça, laminação ou usinagem. Os pinos finalizados devem ter qualidade e condições uniformes, livres de defeitos que possam afetar a qualidade da solda, a adequação para a aplicação pretendida ou o ajuste dos pinos nas proteções especificadas para arcos (virolas) de cerâmica. Tais defeitos incluem sobreposições, rebarbas, costuras, trincados, torções, dobras, defeitos de filetes (rosqueamento), descontinuidades ou materiais estranhos (ver 7.4.1 e 7.4.2). 7.2.5.2 Pinos com cabeça estão sujeitos a rachaduras ou fendas na cabeça do pino, que são interrupções abruptas periféricas causadas pela separação radial do metal que se estende da cabeça até dentro da haste do pino. Essas rachaduras ou fendas não devem ser causa para rejeição, desde que não excedam metade da distância daa cabeça à haste do pino, conforme determinado por meio de inspeção visual (ver Figura C-7.1). Os pinos devem ser rejeitados, se as trincas ou fendas tiverem número ou largura que não permite que a cabeça se ajuste na bucha de soldagem ou cause faíscas entre a cabeça do pino e a bucha, afetando a vida útil desta ou a qualidade da solda. 7.2.6 Material do pino. Os pinos devem ser feitos a partir de barras trefiladas a frio, em conformidade com os requisitos de ASTM A 29, Especificação- padrão para Barras de Aço, Carbono e Liga, Forjadas a Quente, Requisitos Gerais para os Níveis 1010 por meio de 1020, inclusive desoxidação de alumínio ou silício semiacalmados ou acalmados.
  • 303.
    7. SOLDAGEM DEPINOS AWS D1.1/D1.1M:2010 283 7.2.7 Espessura do metal base. Ao soldar diretamente no metal base, este não deve ser inferior a 1/3 do diâmetro do pino. Ao soldar por meio de ponte, o diâmetro do pino não deve exceder 2,5 vezes a espessura do material da base. Em nenhum dos casos, devem ser soldados pinos com mais de duas camadas de cobertura metálica. 7.3 Requisitos mecânicos 7.3.1 Padrão dos requisitos mecânicos. Por opção do fabricante, as propriedades mecânicas dos pinos devem ser determinadas ao testar o aço depois do acabamento a frio ou o diâmetro total dos pinos acabados. Em ambos os casos, os pinos devem estar em conformidade com as propriedades-padrão mostradas na Tabela 7.1. 7.3.2 Testes. As propriedades mecânicas devem ser determinadas de acordo com as seções aplicáveis da norma ASTM A 370, Mechanical Testing of Steel Products (Testes Mecânicos de Produtos de Aço). É usado um dispositivo de teste típico, semelhante ao mostrado na Figura 7.2. 7.3.3 Solicitação do Engenheiro. Mediante solicitação do Engenheiro, o Contratante deverá apresentar: (1) Certificação do fabricante do pino segundo a qual os pinos, tal como fornecidos, estão em conformidade com os requisitos aplicáveis de 7.2 e 7.3. (2) Cópias certificadas dos relatórios de testes do fabricante do pino, compreendendo o último conjunto completo de testes mecânicos de controle de qualidade, exigidos por 7.3 para cada diâmetro fornecido. (3) Relatórios certificados de testes de material (CMTR - Certified Material Test Reports), por parte do fornecedor do aço, indicando o diâmetro, propriedades químicas e grau em cada número térmico fornecido. 7.3.4 Falta de testes de controle de qualidade. Quando os testes de controle de qualidade não estiverem disponíveis, o Contratante deverá apresentar um relatório de testes químicos em conformidade com 7.2.6 e um relatório de testes mecânicos em conformidade com os requisitos de 7.3 para cada número de lote. Pinos não identificados e não rastreáveis não deverão ser utilizados. 7.3.5 Pinos adicionais. O contratante é responsável pelo fornecimento de pinos adicionais de todos os tipos e tamanhos, mediante solicitação do Engenheiro, para checagem dos requisitos de 7.2 e 7.3. Os testes devem ficar a cargo do proprietário. 7.4. Mão de obra/ fabricação 7.4.1 Limpeza. No momento da soldagem, os pinos devem estar livres de ferrugem, crateras de corrosão por ferrugem, descamação, óleo, umidade ou outras substâncias deletérias que, adversamente, possam afetar a operação de soldagem. 7.4.2 Restrições de revestimento. A base do pino não deve ser pintada, galvanizada ou planificada com cádmio antes da soldagem. 7.4.3 Preparação do metal base. As áreas em que os pinos devem ser soldados devem estar livres de lascas, ferrugem, umidade, tinta ou outros materiais prejudiciais à extensão necessária para obter soldas satisfatórias e evitar fumaças indesejáveis. Essas áreas podem ser limpas com escova, escalonamento, punção de marcar ou retificação do fio. 7.4.4 Umidade. As proteções contra arcos ou virolas devem ser mantidas secas. Qualquer proteção para arco que apresente sinais de umidade na superfície, provenientes de orvalho ou chuva, deve ser seca em estufa a 120 º C [250 ° F] por duas horas antes do uso. 7.4.5 Requisitos de espaçamento. Os espaçamentos longitudinais e laterais de conectores de cisalhamento (tipo B) do pino podem variar, no máximo, em 1 in [25 mm] a partir da localização mostrada nos desenhos. A distância mínima da borda de uma base de pino até a borda de uma flange deve ser equivalente ao diâmetro do pino mais 1/8 in [3 mm], mas de preferência não inferior a 1-1/2 in [40 mm]. 7.4.6 Remoção da proteção para arcos. Após a soldagem, as proteções para arcos devem ser tiradas dos pinos a serem embutidos no concreto e, sempre que possível, de todos os outros pinos. 7.4.7 Critérios de aceitação. Após a soldagem, os pinos devem estar livres de quaisquer descontinuidades ou substâncias que possam interferir com a função pretendida e apresentar uma aresta total de 360°. No entanto, a não- fusão nas pernas da aresta e pequenas fissuras reduzidas devem ser aceitáveis. Os perfis de solda de filete mostrados na figura 5.4 não se aplicam às arestas de soldas de pino automaticamente cronometradas. 7.5 Técnica 7.5.1 Soldagem automática mecanizada. Os pinos devem ser soldados com equipamento de soldagem de pinos, cronometrado automaticamente, ligado a uma fonte adequada de energia de corrente contínua de eletrodo negativo. A voltagem, a corrente, o tempo de soldagem e as configurações da pistola para elevar e mergulhar devem ser fixados em configurações ideais, com base em práticas passadas, recomendações do fabricante do pino e do equipamento, ou ambos. A AWS C5.4, Recommended Practices for Stud Welding (“Práticas Recomendadas para Soldagem de Pinos”), deve ser igualmente utilizada para orientação técnica. 7.5.2 Pistolas de soldagem múltiplas. Se duas ou mais pistolas de soldagem de pinos devem ser operadas a partir de uma mesma fonte de energia, elas devem ser interligadas de maneira que apenas uma pistola possa operar de cada vez e para que a fonte de energia esteja completamente recuperada ao fazer uma solda antes que outra solda seja iniciada. 7.5.3 Movimento da pistola de soldagem. Durante a operação, a pistola de soldagem deve ficar parada até que o metal da solda tenha se solidificado. 7.5.4 Requisitos de temperatura do ambiente e do metal base. A soldagem não deve ser feita quando a temperatura do metal base estiver abaixo de –18°C [0 F] ou quando a superfície estiver úmida ou for exposta às intempéries (chuva, geada, neve, maresia). Quando a temperatura do
  • 304.
    7. SOLDAGEM DEPINOS AWS D1.1/D1.1M:2010 284 metal base estiver abaixo de 0°C [32° F], um pino adicional, para cada 100 pinos soldados, deve ser testado pelos métodos descritos em 7.7.1.3 e 7.7.1.4, exceto quando o ângulo de teste for de, aproximadamente, 15°. Isso ocorre além dos dois primeiros pinos testados para cada início de um período de produção ou mudança no ajuste. Esse ajuste inclui uma pistola de soldagem por pontos, uma fonte de energia, o diâmetro do pino, elevação e precipitação da pistola, comprimento total do chumbo para soldagem e mudanças maiores que ± 5% na corrente (amperagem) e tempo. 7.5.5 Opção de solda de filete de FCAW, GMAW, SMAW. Por opção do Contratante, os pinos devem ser soldados usando processos de FCAW, GMAW ou SMAW, desde que sejam observados os seguintes requisitos: 7.5.5.1 Superfícies. As superfícies a serem soldadas e as superfícies adjacentes a uma solda devem estar livres de escamas soltas ou espessas, escórias, ferrugem, umidade, graxa e outros materiais estranhos que impeçam a soldagem adequada ou produzam fumaça desagradável. 7.5.5.2 Extremidade do pino. Para soldas de filete, a extremidade do pino deve estar igualmente limpa. 7.5.5.3 Ajuste do pino (soldas de filete). Para soldas de filete, a base do pino deve ser preparada de modo que ela se ajuste contra o metal base. 7.5.5.4 Tamanho mínimo da solda de filete. Quando for preciso usar soldas de filete, o tamanho mínimo terá que ser maior que os exigidos na Tabela 5.8 ou 7.2. 7.5.5.5 Requisitos de pré-aquecimento. O metal de base no qual são soldados os pinos deve ser pré-aquecido em conformidade com os requisitos da Tabela 3.2. 7.5.5.6 Eletrodos SMAW. A soldagem SMAW deve ser realizada utilizando-se eletrodos com baixo nível de hidrogênio com 5/32 ou 3/16 in [4,0 mm ou 4,8 mm] de diâmetro, exceto quando um eletrodo de menor diâmetro puder ser utilizado em pinos com 7/16 in [11,1 mm], ou menos, de diâmetro, para soldas fora de posição. 7.5.5.7 Inspeção visual. Os pinos soldados de FCAW, GMAW e SMAW devem ser inspecionados visualmente em conformidade com 6.9. 7.6 Requisitos de qualificação de aplicação de pinos 7.6.1 Objetivo. Pinos que são aplicados na oficina ou em campo, na posição horizontal (mão baixa) em uma superfície plana e horizontal, devem ser considerados pré- qualificados em virtude dos testes de qualificação do fabricante para a base de pino (ver 7.9), e não será necessária a aplicação de nenhum outro teste. O limite da posição plana é definido como sendo uma inclinação de 0° a 15° sobre a superfície na qual o pino é aplicado. Eis alguns exemplos de aplicações de pinos que necessitam de testes, desta seção: (1) Pinos que são aplicados em superficies não planas ou em superfícies planas na posição vertical ou elevada. (2) Pinos que são soldados através de coberturas. Os testes devem ser realizados com o material que representa a condição a ser utilizada na construção. (3) Pinos soldados a outros que não sejam os aços do Grupo I ou II listados na Tabela 3.1. 7.6.2 Responsabilidades pelos testes. O Contratante deve ser responsável pela realização desses testes. Em geral, os testes podem ser realizados pelo Contratante, pelo fabricante do pino ou por outra agência de testes que satisfaça todas as partes envolvidas. 7.6.3 Preparação de amostras 7.6.3.1 Amostras para teste. Para qualificar aplicações que envolvam os materiais listados na Tabela 3.1, Grupos I e II, as amostras podem ser preparadas utilizando-se materiais de base de aço da classe ASTM A 36 ou os materiais de base listados na Tabela 3.1, Grupos I e II. 7.6.3.2 Informação registrada. Para qualificar aplicações que envolvam outros materiais que não os listados na Tabela 3.1, Grupos I e II, o material de base da amostra para teste deve apresentar especificações químicas, físicas e de categoria a serem utilizadas na produção. 7.6.4 Número de amostras. Dez amostras devem ser soldadas de forma consecutiva, usando procedimentos recomendados e configurações para cada diâmetro, posição e geometria da superfície. 7.6.5 Testes exigidos. As dez amostras devem ser testadas usando-se um ou mais dos seguintes métodos: flexão (ou dobra), torção (torque) ou tração (ou tensão, ou tensionamento). 7.6.6 Métodos de teste 7.6.6.1 Teste de flexão. Os pinos devem ser testados por flexão alternada de 30° em sentidos opostos em uma instalação de teste típica, como mostrado na figura 7.4, até que a falha ocorra. Alternativamente, os pinos podem ser dobrados até 90° a partir de seu eixo original. Os pinos tipo C, quando dobrados até 90°, devem ser flexionados sobre um pino com diâmetro quatro vezes maior que o diâmetro dos primeiros. Em ambos os casos, a aplicação de um pino deve ser considerada qualificada, se ele for dobrado até 90° e ocorrer fratura no material da placa ou forma, ou na haste do pino e não na solda. 7.6.6.2 Teste de torque. O torque dos pinos deve ser testado usando um método de teste de torque que esteja essencialmente em conformidade com a Figura 7.3. A aplicação do pino deve ser considerada qualificada se todas as amostras forem torqueadas até a destruição sem falhas na solda. 7.6.6.3 Teste de tração. A tração dos pinos deve ser testada até a destruição ao se usar qualquer máquina capaz de fornecer a força necessária. A aplicação do pino deve ser considerada qualificada quando as amostras não falham na soldagem. 7.6.7 Dados para aplicação de teste de qualificação. Aplicação. Os dados para o teste de qualificação devem incluir o seguinte: (1) Desenhos que mostram formas e dimensões dos pinos e proteções para arco.
  • 305.
    7. SOLDAGEM DEPINOS AWS D1.1/D1.1M:2010 285 (2) Uma descrição completa do pino e dos materiais de base, além de uma descrição (número da peça) da proteção para arco. (3) Posição de soldagem e ajustes (corrente, tempo). (4) Um registro que deve ser feito para cada qualificação e estar disponível para cada contrato. Um formulário WPS/PQR indicado para aplicação não pré- qualificada pode ser encontrado no Anexo N, Formulário N-9. 7.7. Controle da produção 7.7.1. Teste de pré-produção 7.7.1.1. Início de turno. Antes da soldagem do material em produção, com uma determinada configuração e com um determinado tamanho e tipo de pino, e no início de cada produção diária ou do período, os testes devem ser realizados nos dois primeiros pinos que são soldados. A técnica do pino pode ser desenvolvida em um pedaço de material semelhante à peça de produção quanto à espessura e propriedades. Se a espessura real da produção não estiver disponível, ela poderá variar em ± 25%. Todos os pinos de teste deverão ser soldados na mesma posição geral, como exigido para a peça de produção (plana, vertical ou elevada). 7.7.1.2 Peça (ou componente) de produção. Opção. Em vez de serem soldados ao material separado, os pinos de teste podem ser soldados à peça de produção, exceto quando chapas separadas forem exigidas de acordo com 7.7.1.5. 7.7.1.3 Requisito de aresta. Os pinos devem apresentar 360° de aresta, sem sinais de entalhe na base do pino. 7.7.1.4 Teste de flexão. Além do exame visual, o teste deve consistir de dobra dos pinos depois que forem resfriados, a um ângulo de aproximadamente 30°, a partir de seu eixo original, seja batendo com um martelo na sua extremidade não soldada, seja colocando um tubo ou outro dispositivo com abertura adequada, envolvendo o pino e dobrando-o, manual ou mecanicamente. Em temperaturas abaixo de 10° C [50° F], a flexão deve ser feita preferencialmente pela aplicação lenta e contínua de carga. Para pinos de rosca, o teste de torque da Figura 7.3 deve ser substituído pelo teste de flexão. 7.7.1.5 Em caso de falha. Se, no exame visual, os pinos de teste não apresentarem aresta de 360° ou se, quando testados, a falha ocorrer na zona de solda de cada pino, o procedimento deve ser corrigido e dois pinos mais devem ser soldados ao material separado ou na peça de produção e testados em conformidade com as disposições de 7.7.1.3 e 7.7.1.4. Se qualquer um dos dois segundos pinos falhar, a soldagem adicional deve ter continuidade em chapas separadas até que dois pinos consecutivos sejam testados e considerados satisfatórios antes que mais pinos da produção sejam soldados à peça de produção. 7.7.2 Soldagem da produção. Uma vez que a soldagem da produção tenha começado, todas as mudanças efetuadas para ajustá-la, conforme determinado em 7.7.1, devem exigir que os testes em 7.7.1.3 e 7.7.1.4 sejam realizados antes que a produção seja retomada. 7.7.3 Reparação de pinos. Na produção, os pinos em que não é obtida uma aresta completa de 360° podem, por opção do contratante, ser reparados por adição de solda de filete mínima, como exigido em 7.5.5, no lugar da aresta que está faltando. A solda de reparação deve ser estendida até, pelo menos, 3/8 in [10 mm] para além de cada extremidade da descontinuidade a ser reparada. 7.7.4 Qualificação do operador. O teste de pré-produção exigido por 7.7.1, se bem sucedido, serve também para qualificar o operador de soldagem do pino. Antes de qualquer produção: os pinos são soldados por um operador não envolvido no ajuste de pré-produção de 7.7.1; os dois primeiros pinos soldados pelo operador devem ter sido testados em conformidade com as disposições de 7.7.1.3 e 7.7.1.4. Quando os dois pinos soldados tiverem sido testados e considerados satisfatórios, o operador poderá então soldar os pinos da produção. 7.7.5 Reparo da área de remoção. Se um pino inadmissível tiver sido removido de uma peça sujeita a tensões de tração, a área da qual o pino foi removido deve ser deixada lisa e nivelada. Onde, nessas áreas, o metal base tiver sido retirado, no decorrer da remoção do pino, em conformidade com as exigências deste código, deve ser usada uma SMAW com eletrodos com baixo nível de hidrogênio, para preencher as placas e a superfície de soldagem deve ser nivelada. Em áreas de compressão de peças, se as falhas nos pinos se limitarem a hastes ou zonas de fusão de pinos, um novo pino pode ser soldado ao lado de cada área não aceitável no lugar de reparo e substituição na área de solda existente (ver 7.4.5). Se o metal base for retirado durante a remoção do pino, as disposições de reparo devem ser as mesmas para as áreas de tração, exceto que, quando a profundidade da descontinuidade for menor que 1/8 in [3 mm] ou 7% da espessura do metal base, essa descontinuidade pode ser carenada por trituração em vez de ser preenchida com metal de solda. Onde deverá ser fornecido um pino de reposição, o reparo do metal base deve ser feito antes da soldagem daquele pino. Os pinos de reposição (não sendo do tipo rosca, cujo torque deve ser testado) devem ser testados ao serem dobrados até um ângulo de aproximadamente 15° a partir de seus eixos originais. As áreas de componentes expostos para serem vistos em estruturas completas devem ser deixadas lisas e niveladas, no local em que um pino tiver sido removido. 7.8 Requisitos de inspeção de controle e fabricação 7.8.1 Inspeção visual. Se a inspeção visual revelar qualquer pino que não apresente uma aresta completa de 360° ou qualquer pino que tenha sido reparado por soldagem, ele deve ser flexionado a um ângulo de aproximadamente 15° a partir de seu eixo original. O torque de pinos com rosca deve ser testado. O método de flexão deve ser feito em conformidade com 7.7.1.4. A direção de flexão para pinos com aresta abaixo de 360°
  • 306.
    7. SOLDAGEM DEPINOS AWS D1.1/D1.1M:2010 286 deve ser oposta à porção que falta da aresta. O teste de torque deve estar em conformidade com a Figura 7.3. 7.8.2 Testes adicionais. O Inspector de Controle, se as condições o permitirem, pode selecionar um número razoável de pinos adicionais a serem submetidos aos testes descritos em 7.8.1. 7.8.3 Critérios de aceitação do pino curvado. Os conectores de cisalhamento do pino dobrado (Tipo B) e âncoras deformadas (tipo C) e outros pinos a serem embutidos no concreto (Tipo A), que não apresentam sinais de falha, devem ser aceitáveis para uso e deixados na posição dobrada. Quando os documentos contraturais exigirem que os pinos dobrados sejam endireitados, a operação de endireitamento deve ser feita sem aquecimento e antes que a operação de soldagem do pino da produção seja concluída. 7.8.4 Critérios de aceitação do teste de torque. O uso dos pinos de rosca (Tipo A), cujo nível de torque foi testado na prova de carga da Figura 7.3 e que não apresentam sinais de falha, deve ser aceitável. 7.8.5 Ação corretiva. Pinos soldados que não respeitem os requisitos do código devem ser reparados ou substituídos pelo Contratante, que deverá rever o procedimento de soldagem, conforme necessário, para garantir que a soldagem de pinos subsequentes atenda aos requisitos do código. 7.8.6 Opção do proprietário. Por opção e a expensas do proprietário, o contratante pode ser obrigado, a qualquer momento, a apresentar pinos dos tipos usados, nos termos do contrato, para uma verificação de qualificação em conformidade com os procedimentos de 7.9. 7.9 Requisitos do fabricante quanto à qualificação da base do pino 7.9.1 Objetivo. O objetivo desses requisitos é prescrever testes para certificação de fabricantes sobre a soldabilidade da base de pinos. 7.9.2 Responsabilidade pelos testes. O fabricante do pino será responsável pela realização do teste de qualificação. Esses testes podem ser realizados por uma agência de testes que seja satisfatória para o Engenheiro. A agência a realizar os testes deve submeter um relatório de certificação ao fabricante dos pinos, fornecendo os procedimentos e resultados em todos os testes, incluindo a informação descrita em 7.9.10. 7.9.3 Extensão da qualificação. A qualificação de uma base de pino deve consistir de uma qualificação de bases de pino com a mesma geometria, fluxo e proteção de arco, com o mesmo diâmetro e diâmetros que são menores, cerca de menos de 1/8 in [3 mm]. Uma base de pino classificada com um grau de aprovação do aço da classe ASTM A29 e que satisfaça os padrões de propriedades mecânicas (ver 7.3.1) deve consituir qualificação em todos os outros graus aprovados do aço da classe ASTM A29 (ver 7.2.6), desde que essa conformidade com todas as outras disposições aqui descritas seja alcançada. 7.9.4 Duração da qualificação. Um tamanho de proteção para arco de base de pino, uma vez qualificado, deverá ser considerado como tal até que o fabricante do pino faça qualquer alteração na geometria, no material, no fluxo ou na proteção para arco da base do pino que afete as características de soldagem. 7.9.5 Preparação de amostras 7.9.5.1 As amostras para teste devem ser preparadas por meio da soldagem de pinos representativos a chapas de amostra adequadas de aço da classe ASTM A36 ou quaisquer outros materiais listados na Tabela 3.1 ou 4.9. Os pinos a serem soldados através de coberturas metálicas devem ter os testes de qualificação de base da solda realizados por soldagem através de cobertura metálica representativa daquela usada em construção, galvanizada pela designação de revestimento G90, para uma espessura de ponte, ou G60, para uma ponte com duas camadas, da classe ASTM A653. Quando os pinos forem soldados através de cobertura, o teste de qualificação do pino de base deve incluir cobertura representativa daquela usada em construção. A soldagem deve ser feita na posição horizontal (superfície horizontal da chapa). Os testes para pinos de rosca devem estar em branco (pinos sem rosca). 7.9.5.2 Os pinos devem ser soldados com fonte de energia, pistola de soldagem e equipamento controlado automaticamente pelo fabricante do pino. A voltagem, a corrente e o tempo de soldagem (ver 7.9.6) devem ser medidos e registrados para cada amostra. A elevação e a precipitação devem estar em configuração ideal, como recomendado pelo fabricante. 7.9.6 Número de amostras para testes 7.9.6.1 Para pinos com 7/8 in [22 mm] de diâmetro ou menos, 30 amostras de testes devem ser soldadas consecutivamente com tempo ideal constante, mas com corrente 10% acima do ideal. Para pinos com mais de 7/8 in [22 mm] de diâmetro, 10 amostras de teste devem ser soldadas consecutivamente com tempo ideal constante. A corrente e o tempo ideais devem ser o ponto médio da faixa normalmente recomendada pelo fabricante para a soldagem de produção. 7.9.6.2 Para pinos com 7/8 in [22 mm] de diâmetro ou menos, 30 amostras devem ser soldadas consecutivamente com tempo ideal constante, mas com corrente 10% abaixo do ideal. Para pinos com mais de 7/8 in [22 mm] de diâmetro, 10 amostras devem ser soldadas consecutivamente com tempo ideal constante, mas com corrente 5% abaixo do ideal. 7.9.6.3 Para pinos a serem soldados através de cobertura metálica, a faixa dos diâmetros da base de solda deve ser qualificada pela soldagem de 10 pinos, na corrente e no tempo ideais, como recomendado pelo fabricante em conformidade com o seguinte: (1) Diâmetros máximo e mínimo soldados através de uma espessura de ponte com calibre 16, designação de revestimento G90. (2) Diâmetros máximo e mínimo soldados através de duas camadas de ponte com calibre 16, designação de revestimento G60. (3) Diâmetros máximo e mínimo soldados através de uma espessura de ponte G60 com calibre 18 acima de uma espessura de ponte G60 com calibre 16.
  • 307.
    7. SOLDAGEM DEPINOS AWS D1.1/D1.1M:2010 287 (4) Diâmetros máximo e mínimo soldados através de duas camadas de ponte com calibre 18, ambas com designação de revestimento G60. A faixa de diâmetros de mínimo a máximo, soldada através de duas camadas de cobertura metálica de calibre 18 com galvanização G60, deve ser qualificada para soldagem através de uma ou duas camadas de cobertura metálica com espessura calibre 18 ou menos. 7.9.7 Testes 7.9.7.1 Testes de tração. Dez das amostras soldadas em conformidade com 7.9.6.1 e dez em conformidade com 7.9.6.2 devem ser submetidas a um teste de tração em um dispositivo semelhante ao mostrado na Figura 7.2, exceto que pinos sem cabeça podem ser segurados na extremidade não soldada nas mandíbulas da máquina de teste de tração. A base do pino deve ser considerada qualificada, se todas as amostras de teste tiverem uma resistência à tração igual ou superior ao mínimo descrito em 7.3.1. 7.9.7.2 Testes de flexão (pinos com 7/8 in [22 mm] de diâmetro ou menos). Vinte das amostras soldadas em conformidade com 7.9.6.1 e vinte em conformidade com 7.9.6.2 devem ter sua flexão testada ao serem flexionadas, alternadamente, em 30° a partir de seu eixo original, em direções opostas até ocorrer a falha. Os pinos devem ser dobrados em um dispositivo de teste de flexão, como mostrado na Figura 7.4, exceto que pinos com menos de 1/2 in [12 mm] de diâmetro podem ser flexionados usando um dispositivo, como mostrado na Figura 7.5. A base de pino deve ser considerada qualificada se, em todas as amostras para teste, a fratura ocorrer no material da chapa ou na haste do pino e não na solda ou HAZ. Todas as amostras de teste para pinos com mais de 7/8 in [22 mm] só devem ser submetidas a testes de tração. 7.9.7.3 Solda por meio de testes de cobertura. Todas as 10 soldagens através das amostras de pino da cobertura devem ser testadas ao serem flexionadas em 30° em direções opostas, em um dispositivo de teste de flexão, como mostrado na Figura 7.4 ou por teste de flexão de 90° a partir de seu eixo original ou teste de tração, até a destruição na máquina capaz de fornecer a força necessária. Com qualquer método de teste utilizado, a faixa de diâmetros do pino do mínimo ao máximo deve ser considerada como bases de soda qualificadas para soldagem através da cobertura se, em todas as amostras de teste, ocorrer fratura no material da chapa ou na haste do pino e não na solda ou HAZ. 7.9.8 Novos testes. Se ocorrer falha em alguma solda ou HAZ, em qualquer um dos grupos de teste de flexão de 7.9.7.2, ou em menos do que a resistência à tração mínima especificada do pino em qualquer dos grupos de tensão em 7.9.7.1, um novo grupo de testes (descrito em 7.9.6.1 ou 7.9.6.2, conforme o caso) deve ser preparado e testado. Se essas falhas se repetirem, a base do pino deve falhar na qualificação. 7.9.9 Aceitação. Para a combinação de proteção para arco e a base do pino do fabricante ser qualificada, cada pino de cada grupo de 30 pinos deve, por meio de teste ou novo teste, satisfazer os requisitos descritos em 7.9.7. A qualificação de um determinado diâmetro da base do pino deve ser considerada uma qualificação para bases de pino com o mesmo diâmetro nominal (ver 7.9.3, geometria, material, fluxo e proteção para arco da base do pino). 7.9.10 Dados do teste de qualificação do fabricante. Os dados do teste devem incluir o seguinte: (1) Desenhos mostrando formas e dimensões com tolerâncias de pino, proteções contra arcos e fluxo; (2) Uma descrição completa dos materiais utilizados nos pinos, inclusive a quantidade e o tipo de fluxo e uma descrição das proteções contra arcos. (3) Resultados certificados de testes.
  • 308.
    7. SOLDAGEM DEPINOS AWS D1.1/D1.1M:2010 288 Tabela 7.1 Requisitos de Propriedades Mecânicas para Pinos (ver 7.3.1) Tipo Aa Tipo Bb Tipo Cc Resistência à Tração psi min. MPa min. 61 000 420 65 000 450 80 000 552 Limite de Elasticidade (0.2% deslocamento) psi min. MPa min. 49 000 340 51 000 350 — (0.5% deslocamento) psi min. MPa min. — — 70 000 485 Alongamento % in 2 in min. % in 5x dia. min. 17% 14% 20% 15% — Redução da área % min. 50% 50% — a Pinos Tipo A devem ser propósito geral de qualquer tipo e tamanho usado para outros propósitos que não transferência de cisalhamento em projeto e construção de feixe compósito. b Pinos Tipo B devem ser pinos com cabeça, flexionados ou de outra configuração em diâmetro de 3/8 in [10 mm], 1/2 in [12 mm], 5/8 in [16 mm], 3/4 in [20 mm], 7/8 in [22 mm], e 1 in [25 mm] que são usados como componentes essenciais em projeto de feixe compósito e projeto de ancoragem de concreto. c Pinos Tipo C devem ser barras de aço deformadas por trabalho a frio fabricadas em conformidade com a especificação ASTM A 496 tendo um diâmetro nominal equivalente ao diâmetro de um arame simples tendo o mesmo peso por pé que o arame deformado. ASTM A 496 especifica um diâmetro máximo de 0,628 in [16 mm]. Qualquer barra fornecida acima desse diâmetro deve ter as mesmas características físicas com respeito a deformações como requerido por ASTM A 496. Tabela 7.2 Tamanho Mínimo de Solda de Filete Para Pinos de Pequeno Diâmetro (ver 7.5.5.4) Diâmetro do Pino Tamanho Min. de Filete in mm in mm 1/4 até 7/16 6 até 11 3/16 5 1/2 12 1/4 6 5/8, 3/4, 7/8 16, 20, 22 5/16 8 1 25 3/8 10
  • 309.
    7. SOLDAGEM DEPINOS AWS D1.1/D1.1M:2010 289 a Comprimento manufaturado antes da soldagem. Dimensões Padrão, in Diâmetro da Haste (C) Tolerâncias de Comprimento (L) Diâmetro da Cabeça (H) Altura Mínima da Cabeça (T) 3/8 +0.010 –0.010 ±1/16 3/4 ± 1/64 9/32 1/2 +0.010 –0.010 ± 1/16 1 ± 1/64 9/32 5/8 +0.010 –0.010 ± 1/16 1-1/4 ± 1/64 9/32 3/4 +0.015 –0.015 ± 1/16 1-1/4 ± 1/64 3/8 7/8 +0.015 –0.015 ± 1/16 1-3/8 ± 1/64 3/8 1 +0.020 –0.020 ± 1/16 1-5/8 ± 1/64 1/2 Dimensões Padrão, mm 10 +0.25 –0.25 ± 1.6 19 ± 0.40 7.1 13 +0.25 –0.25 ± 1.6 25 ± 0.40 7.1 16 +0.25 –0.25 ± 1.6 32 ± 0.40 7.1 19 +0.40 –0.40 ± 1.6 32 ± 0.40 22 +0.40 –0.40 ± 1.6 35 ± 0.40 25 +0.40 –0.40 ± 1.6 41 ± 0.40 12.7 Figura 7.1 - Dimensões e Tolerâncias de Pinos com Cabeça do Tipo-Padrão (ver 7.2.1) Figura 7.2 – Suporte de Tese de Tensão Típico (ver 7.3.2)
  • 310.
    7. SOLDAGEM DEPINOS AWS D1.1/D1.1M:2010 290 Nota: Dimensões de detalhes de suporte de teste deveriam ser apropriados para o tamanho do pino. As roscas do pino devem estar limpas e livres de outros lubrificantes que não o resíduo de corte/lubrificantes formadores de frio na condição “como recebido” do fabricante. Torque de Prova Requerido para Testar Pinos Rosqueadosa Diâmetro Nominal M.E.T.A.b Rosca Torque de Teste de Provac in mm in2 mm2 no./in pitch-mm Series b-ft Joule 0,236 M6 0,031 20,1 1,0 ISO-724 5,4 7,4 1/4 6,4 0,036 23,2 28 UNF 6,6 9,0 0,032 20,6 20 UNC 5,9 7,8 5/16 7,9 0,058 37,4 24 UNF 13,3 18,1 0,052 33,5 18 UNC 11,9 16,1 0,315 M8 0,057 36,6 1,25 ISO-724 13,2 17,9 3/8 9,5 0,088 56,8 24 UNF 24,3 32,9 0,078 50,3 16 UNC 21,5 29,2 0,394 M10 0,090 58,0 1,5 ISO-724 26,2 35,5 7/16 11,1 0,118 76,1 20 UNF 37,9 51,4 0,106 68,4 14 UNC 34,8 47,2 0,472 M12 0,131 84,3 1,75 ISO-724 45,7 61,9 1/2 12,7 0,160 103,2 20 UNF 58,8 79,7 0,142 91,6 13 UNC 52,2 70,8 0,551 M14 0,178 115,0 2,0 ISO-724 72,7 98,5 9/16 14,3 0,203 131,0 18 UNF 83,9 113,8 0,182 117,4 12 UNC 75,2 102,0 5/8 15,9 0,255 164,5 18 UNF 117,1 158,8 0,226 145,8 11 UNC 103,8 140,8 0,630 M16 0,243 157,0 2,0 ISO-724 113,4 153,7 3/4 19,1 0,372 240,0 16 UNF 205,0 278,0 0,334 215,5 10 UNC 184,1 249,7 0,787 M20 0,380 245,0 2,5 ISO-724 221,2 299,9 0,866 M22 0,470 303,0 2,5 ISO-724 300,9 408,0 7/8 22,2 0,509 328,4 14 UNF 327,3 443,9 0,462 298,1 9 UNC 297,1 402,9 0,945 M24 0,547 353,0 3,0 ISO-724 382,4 518,5 1 25,4 0,678 437,4 12 UNF 498,3 675,7 0,606 391,0 8 UNC 445,4 604,0 a Figuras de torque aão baseadas em pinos rosqueados do Tipo A com limite de escoamento mínimo de 49 000 psi [340 MPa]. b Área de Rosca Efetiva Média (M.E.T.A) deve ser definida como a area de tensão efetiva baseada em um diâmetro médio tomado aproximadamente a os diâmetros menor e de passo. c Valores são calculados em torque de teste de prova de 0,9 vezes o Diâmetro Nominal do Pino vezes 0,2 Fator de Coeficiente de Fricção vezes Área de Rosca Efetiva Média vezes Limite de escoamento Mínimo para pinos não banhados na condição como recebido. Banhos, revestimentos ou depósitos de oleo/graxa alterarão o Fator de Coeficiente de Fricção. Figura 7.3 – Arranjo de Teste de Torque e Tabela de Torques de Teste (ver 7.6.6.2)
  • 311.
    7. SOLDAGEM DEPINOS AWS D1.1/D1.1M:2010 291 Figura 7.4 – Dispositivo de Teste de Flexão (ver 7.9.7.2) Figura 7.5 – Tipo de Dispositivo Sugerido para Teste de Qualificação de Pinos Pequenos (ver 7.9.7.2
  • 312.
    AWS D1.1/D1.1M:2010 292 8. Fortalecendoe Reparando Estruturas Existentes 8.1 Geral Fortalecer ou reparar uma estrutura existente deve consistir de modificações para atender aos requisitos de projeto especificados pelo Engenheiro. O Engenheiro deve preparar um plano abrangente para o trabalho. Tais planos devem incluir, entre outros, projeto, mão-de-obra, inspeção e documentação. Exceto como modificado nessa seção, todas as provisões desse código devem aplicar-se igualmente a reforço e reparo de estruturas existentes, incluindo endireitamento por aquecimento de membros distorcidos. 8.2 Metal Base 8.2.1 Investigação. Antes de preparar desenhos e especificações para reforço ou reparo de estruturas existents, os tipos de metal base usados na estrutura original devem ser determinados por desenhos e espicificações existentes, ou a partir de testes de metal base representativos. 8.2.2 Adequação para Soldagem. Deve ser estabelecida a adequação do metal de base para soldagem (ver Tabela C-8.1 para orientação). 8.2.3 Outros Metais Base. Quando metais base que não os listados na Tabela 3.1 devem ser juntados, o Engenheiro deve dar consideração especial à seleção de metal de adição e WPSs. 8.3 Projeto para Fortalecimento e Reparação 8.3.1 Processo de Projeto. O processo de projeto deve considerar as provisões do código governante e outras partes de especificações gerais. O Engenheiro deve especificar o tipo e extensão de pesquisa necessário para identificar condições existentes que requerem reforço ou reparo para satisfazer os critérios aplicáveis. 8.3.2 Análise de Tensão. Uma análise de tensões na área afetada pelo reforço ou reparo deve ser feita. Níveis de tensão devem ser estabelecidos para todos os casos de carga viva e morta no local. Deve ser feita consideração sobre o dano acumulado que membros podem ter sustentado em serviços passados. 8.3.3 Histórico de Fadiga. Membros sujeitos a carga cíclica devem ser projetados de acordo com os requisitos de tensão de fadiga. O histórico de carga prévia deve ser considerado no projeto. Quando o histórico de carga não está disponível, ele deve ser estimado. 8.3.4 Restauração ou Reposição. Deve ser feita uma determinação sobre se os reparos deveriam consistir de restaurar partes corroídas ou de outra forma danificadas ou da substituição de membros inteiros. 8.3.5 Carregamento Durante as Operações. O Engenheiro deve determinar a extensão na qual será permitido que um membro carregue cargas enquanto aquecimento, soldagem ou corte térmico é realizado. Quando necessário, as cargas devem ser reduzidas. A estabilidade local e geral do membro deve ser investigada, considerando o efeito de temperaturas elevadas estenderem-se sobre parte da área de seção transversal. 8.3.6 Conexões Existentes. Conexões existents em estruturas requerendo reforço ou reparo devem ser valiadas para adequação de projeto e reforçadas se necessário. 8.3.7 Uso de Fixadores Existentes. Quando calculus de projeto mostram que rebites ou parafusos sofrerão tensão excessiva pela nova carga total, apenas carga morta existente deve ser designada para eles. Se rebites ou parafusos sofrem tensão excessive apenas pela carga morta ou estão sujeitos a carga cíclica, então metal base e soldagem suficientes devem ser acrescentadas para suportar a carga total.
  • 313.
    7. SOLDAGEM DEPINOS AWS D1.1/D1.1M:2010 293 8.4 Aprimoramento do Tempo de Fadiga 8.4.1 Métodos. Os seguintes métodos de recondicionamento de detalhes de soldas críticas podem ser usados quando procedimentos por escrito foram aprovados pelo Engenheiro: (1) Melhoria de Perfil. Refazer a forma da face de solda ao retificar com uma broca de carboneto para obter um perfil côncavo com uma transição suave de material base a solda. (2) Retificação de Extremidade. Refazer a forma somente das extremidades de solda ao retificar com uma broca ou torno de mão. (3) Martelamento. Rebitagem de superfície de solda, ou martelamento de extremidades de solda. (4) Preparação TIG. Refazer a forma da solda ao derreter novamente o metal de solda existente com calor de arco GTAW (nenhum metal de adição usado). (5) Retificação de Extremidade mais Martelamento. Quando usados juntos, os benefícios são cumulativos. 8.4.2 Aumento da Faixa de Tensão. O Engenheiro deve estabelecer o aumento adequado O Engenheiro deve estabelecer o aumento apropriado na faixa de tensão permissível. 8.5 Mão-de-Obra e Técnica 8.5.1 Condição de Metal Base. Metal base metal a ser reparado e superficies de metal base existente em contato com novo metal base devem ser limpas de poeira, ferrugem e material estranaha, exceto filme de tinta aderente como em SPC SP2 (Surface Preparation Specification #2 - Hand Tool Cleaning). As partes de tais superficies que serão soldadas devem ser totalmente limpas de toda matéria estranha, inclusive tinta, por pelo menos 2 in [50 mm] a partir da raiz da solda. 8.5.2 Descontinuidades de Membro. Quando requerido pelo Engenheiro, descontinuidades inaceitáveis no membro sendo reparado ou reforçado devem ser corrigidas antes de endireitamento por aquecimento, curvamento por aquecimento ou soldagem. 8.5.3 Reparos de Solda. Se reparos de solda são necessários, eles devem ser feitos em conformidade com 5.26, conforme aplicável. 8.5.4 Metal Base de Espessura Insuficiente. O metal base que não tem espessura suficiente para desenvolver o tamanho necessário ou a capacidade necessária de solda deve ser, como determinado pelo Engenheiro: (1) construído com metal de solda até a espessura requerida, (2) cortado até que a espessura adequada esteja disponível, (3) reforçado com metal base adicional ou (4) removido e recolocado com metal base de espessura e força adequadas. 8.5.5 Endireitamento por Aquecimento. Quando métodos de endireitamento por aquecimento ou curvamento por aquecimento são usados, a temperatura máxima das áreas aquecidas como medida pelo uso de crayons sensíveis à temperatura ou outros meios positivos não deve exceder 1100°F [600°C] para aço resfriado e temperado, nem 1200°F [650°C] para outros aços. O resfriamento acelerado de aço acima de 600°F [315°C] deve ser proibido. 8.5.6 Sequência de Soldagem. Ao reforçar ou reparar membros pela adição de metal base ou metal de solda, ou ambos, a soldagem e sequência de solda deve, tanto quanto possível, resultar em uma entrada de calor equilibrada ao redor do eixo neutro para minimizar distorção e tensões residuais. 8.6 Qualidade 8.6.1 Inspeção Visual. Todos os membros e soldas afetados pelo trabalho devem ser inspecionados visualmente em conformidade com o plano de abarangência do Engenheiro. 8.6.2 NDT. O método, extensão e critérios de aceitação de NDT devem ser especificados nos documentos de contrato.
  • 314.
    AWS D1.1/D1.1M:2010 294 Anexos Informações Normativas Essesanexos contêm informações e requisitos que são considerados parte de um padrão. Anexo A Garganta Efetiva Anexo B Gargantas Efetivas de Soldas de Filete em Juntas Oblíquas em T Anexo D Aplainamento de Braçadeiras de Trave—Estruturas Estaticamente Carregadas Anexo E Aplainamento de Braçadeiras de Trave—Estruturas Ciclicamente Carregadas Anexo F Gráficos de Conteúdo de Temperatura-Umidade Anexo G Requisitos de Qualificação de Fabricantes de Base de Pinos Anexo H Qualificação e Calibragem de Unidades UT com Outros Blocos de Referência Aprovados Anexo I Diretriz sobre Métodos Alternativos para Determinar Pré-Aquecimento Anexo J Símbolos para Projeto de Solda de Conexão Tubular Informações Instrutivas Esses anexos não são considerados uma parte do padrão e são fornecidos apenas para propósitos informativos. Anexo K Termos e Definições Anexo L Guia para Especificação de Ativadores Anexo M Qualificação de Equipamento e Formulários de Inspeção UT Anexo N Formulários de Amostra de Soldagem Anexo O Diretrizes para Preparação de Investigações Técnicas para o Comitê de Soldagem Estrutural (Structural Welding Committee) Anexo P Ângulo Diedro Local Anexo Q Conteúdos de WPS Pré-qualificada Anexo R Práticas de Segurança Anexo S Exame UT de Soldas por Técnicas Alternativas Anexo T Parâmetro Alfa Oval Anexo U Lista de Documentos de Referência Anexo V Propriedades de Resistência de Metal de Adição
  • 315.
    AWS D1.1/D1.1M:2010 295 Esta páginaestá intencionalmente em branco
  • 316.
    AWS D1.1/D1.1M:2010 296 Anexo A(Normativo) Garganta Efetiva Esse anexo é parte de D1.1/D1.1M:2010, Código de Soldagem Estrutural - Aço, da AWS, e inclui elementos obrigatórios para uso com esse padrão. Observação: A garganta efetiva de solda deve ser definida como a distância mínima da raiz de junta a sua face, com ou sem dedução de 1/8 in [3 mm], menos qualquer convexidade.
  • 317.
    AWS D1.1/D1.1M:2010 297 Esta páginaestá intencionalmente em branco.
  • 318.
    AWS D1.1/D1.1M:2010 298 Anexo B(Normativo) Gargantas Efetivas de Soldas de Filete em Juntas Oblíquas em T Esse anexo é parte de D1.1/D1.1M:2010, Código de Soldagem Estrutural - Aço, da AWS, e inclui elementos obrigatórios para uso com esse padrão. A Tabela B.1 é uma tabulação mostrando fatores equivalentes de tamanho de perna para a faixa de ângulos diedros entre 60° e 135°, presumindo que não haja abertura de raiz. Abertura(s) de raiz de 1/16 in [2 mm] ou maior, mas sem exceder 3/16 in [5 mm], deve ser acrescentada diretamente ao tamanho de perna. O tamanho de perna requerido para soldas de filete em juntas oblíquas deve ser calculado usando o fator equivalente de tamanho de perna para ângulo diedro correto, como mostrado no exemplo. EXEMPLO (Unidades Convencionais dos EUA) Dado: Junta oblíqua em T-, ângulo: 75°; abertura de raiz: 1/16 (0,063) in Requerido: Resistência equivalente a 90° de solda de filete de tamanho: 5/16 (0,313) in Procedimento: (1) Fator para 75° da Tabela B 1: 0,86 (2) Tamanho de perna equivalente, w, de junta oblíqua, sem abertura de raiz: w = 0,86 x 0,313 = 0,269 in (3) Com abertura de raiz de: 0,063 in (4) Tamanho de perna requerido, w=0,332 in de solda de filete oblíqua: [(2) + (3)] (5) Arrendondando para uma dimensão prática: w = 3/8 in EXEMPLO (Unidades SI) Dado: Junta oblíqua em T-, ângulo: 75°; abertura de raiz: 2 mm Requerido: Resistência equivalente a 90° de solda de filete de tamanho: 8 mm Procedimento: (1) Fator para 75° da Tabela B 1: 0,86 (2) Tamanho de perna equivalente, w, de junta oblíqua, sem abertura de raiz: w = 0,86 x 8 = 6,9 mm (3) Com abertura de raiz de: 2 mm (4) Tamanho de perna requerido, w, de 8,9 mm solda de filete oblíqua: [(2) + (3)] (5) Arrendondando para uma dimensão prática: w = 9,0 mm Para soldas de filete tendo pernas de medida igual (wn), a distância da raiz da junta para a face da solda diagramática (tn) pode ser calculada como segue: Para aberturas de raiz > 1/16 in 2 mm e ≤ 3/ 6 in [5 mm], use Para aberturas de raiz < 1/16 in [2 mm], use Rn e t’n = tn quando a perna medida de tal solda de filete (wn) é a distância perpendicular da superfície da junta à extremidade oposta, e (R) é a abertura de raiz, se houver, entre as partes (ver Figura 3.11). Aberturas de raiz aceitáveis são definidas em 5.22.1.
  • 319.
    AWS D1.1/D1.1M:2010 ANEXOD 299 Tabela B.1 Fatores Equivalentes de Tamanho de Perna de Solda de Filete para Juntas Oblíquas em T- Ângulo diedro. ψ 60 65 70 75 80 85 90 95 Tamanho de solda de filete comparável para mesma resistência 0,71 0,76 0,81 0,86 0,91 0,96 1,00 1,03 Ângulo diedro. ψ 100 105 110 115 120 125 130 135 Tamanho de solda de filete comparável para mesma resistência 1,08 1,12 1,16 1,19 1,23 1,25 1,28 1,31
  • 320.
    AWS D1.1/D1.1M:2010 300 Anexo C Nãohá Anexo C. O Anexo C foi omitido para evitar possível confusão com referências às cláusulas do Comentário.
  • 321.
    AWS D1.1/D1.1M:2010 301 Esta páginaestá intencionalmente em branco
  • 322.
    AWS D1.1/D1.1M:2010 302 Anexo D(Normativo) Aplainamento de Braçadeiras de Trave—Estruturas Estaticamente Carregadas Esse anexo é parte de D1.1/D1.1M:2010, Código de Soldagem Estrutural - Aço, da AWS, e inclui elementos obrigatórios para uso com esse padrão. Observações: 1. D = Profundidade de braçadeira. 2. d = Menor dimensão do painel.
  • 323.
    AWS D1.1/D1.1M:2010 ANEXOD 303 Tabela D.1 Reforços Intermediários em Ambos os Lados de Braçadeira Espessura de Braçadeira in Profundidade de Braçadeira in Menor Dimensão do Painel in 5/16 Menor que 47 25 31 38 44 50 47 e acima 20 25 30 35 40 45 50 55 60 6 70 75 80 85 3/8 Menor que 56 25 31 38 44 50 56 63 56 e acima 20 25 30 35 40 45 50 55 60 6 70 75 80 85 7/16 Menor que 66 25 31 38 44 50 56 63 69 66 e acima 20 25 30 35 40 45 50 55 60 6 70 75 80 85 1/2 Menor que 75 25 31 38 44 50 56 63 69 75 8 75 e acima 20 25 30 35 40 45 50 55 60 6 70 75 80 85 9/16 Menor que 84 25 31 38 44 50 56 63 69 75 8 88 84 e acima 20 25 30 35 40 45 50 55 60 6 70 75 80 85 5/8 Menor que 94 25 31 38 44 50 56 63 69 75 8 88 94 94 e acima 20 25 30 35 40 45 50 55 60 6 70 75 80 85 Variação Máxima Permissível in 1/4 5/16 3/8 7/16 1/2 9/16 5/8 11/16 3/4 13/16 7/8 15/16 1 1-1/16 Espessura de Braçadeira mm Profundidade de Braçadeira m Menor Dimensão do Painel metros 8,0 Menor que 1,19 0,63 0,79 0,97 1,12 1,27 1,19 e acima 0,51 0,63 0,76 0,89 1,02 1,14 1,27 1,40 1,52 1,65 1,78 1,90 2,03 2,16 9,5 Menor que 1,42 0,63 0,79 0,97 1,12 1,27 1,42 1,60 1,42 e acima 0,51 0,63 0,76 0,89 1,02 1,14 1,27 1,40 1,52 1,65 1,78 1,90 2,03 2,16 11,1 Menor que 1,68 0,63 0,79 0,97 1,12 1,27 1,42 1,60 1,75 1,68 e acima 0,51 0,63 0,76 0,89 1,02 1,14 1,27 1,40 1,52 1,65 1,78 1,90 2,03 2,16 12,7 Menor que 1,90 0,63 0,79 0,97 1,12 1,27 1,42 1,60 1,75 1,90 2,06 1,90 e acima 0,51 0,63 0,76 0,89 1,02 1,14 1,27 1,40 1,52 1,65 1,78 1,90 2,03 2,16 14,3 Menor que 2,13 0,63 0,79 0,97 1,12 1,27 1,42 1,60 1,75 1,90 2,06 2,24 2,13 e acima 0,51 0,63 0,76 0,89 1,02 1,14 1,27 1,40 1,52 1,65 1,78 1,90 2,03 2,16 15,9 Menor que 2,39 0,63 0,79 0,97 1,12 1,27 1,42 1,60 1,75 1,90 2,06 2,24 2,39 2,39 e acima 0,51 0,63 0,76 0,89 1,02 1,14 1,27 1,40 1,52 1,65 1,78 1,90 2,03 2,16 Variação Máxima Permissível milímetros 6 8 10 11 12 16 14 16 18 20 21 24 25 27 Observação: Para dimensões reais não exibidas, use a figura mais alta a seguir Tabela D.2 Sem Reforços Intermediários Espessura de Braçadeira, in Profundidade de Braçadeira, in Qualquer 38 47 56 66 75 84 94 103 113 122 131 141 150 159 169 178 188 Variação Máxima Permissível, in 1/4 5/16 3/8 7/16 1/2 9/16 5/8 11/16 3/4 13/16 7/8 15/16 1 1-1/16 1-1/8 1-3/16 1-1/4 Espessura de Braçadeira, mm Profundidade de Braçadeira, metros Qualquer 0,97 1,19 1,42 1,68 1,90 2,13 2,39 2,62 2,87 3,10 3,33 3,58 3,81 4,04 4,29 4,52 4,77 Variação Máxima Permissível, milímetros 6 8 10 11 12 14 16 18 20 21 22 24 25 27 29 30 32 Observação: Para dimensões reais não exibidas, use a figura mais alta a seguir
  • 324.
    AWS D1.1/D1.1M:2010 ANEXOD 304 Tabela D.3 Reforços Intermediários em Apenas Um Lado de Braçadeira Espessura de Braçadeira in Profundidade de Braçadeira in Menor Dimensão do Painel in 5/16 Menor que 31 25 31 31 e acima 17 21 25 29 34 38 42 46 50 54 59 63 67 71 3/8 Menor que 38 25 31 38 38 e acima 17 21 25 29 34 38 42 46 50 54 59 63 67 71 7/16 Menor que 44 25 31 38 44 44 e acima 17 21 25 29 34 38 42 46 50 54 59 63 67 71 1/2 Menor que 50 25 31 38 44 50 50 e acima 17 21 25 29 34 38 42 46 50 54 59 63 67 71 9/16 Menor que 56 25 31 38 44 50 56 56 e acima 17 21 25 29 34 38 42 46 50 54 59 63 67 71 5/8 Menor que 63 63 e acima 25 31 38 44 50 56 63 17 21 25 29 34 38 42 46 50 54 59 63 67 71 Variação Máxima Permissível in 1/4 5/16 3/8 7/16 1/2 9/16 5/8 11/16 3/4 13/16 7/8 15/16 1 1-1/16 Espessura de Braçadeira mm Profundidade de Braçadeira m Menor Dimensão do Painel metros 8,0 Menor que 0,78 0,63 0,79 0,78 e acima 0,43 0,53 0,63 0,74 0,86 0,97 1,07 1,17 1,27 1,37 1,50 1,60 1,70 1,80 9,5 Menor que 0,97 0,63 0,79 0,97 0,97 e acima 0,43 0,53 0,63 0,74 0,86 0,97 1,07 1,17 1,27 1,37 1,50 1,60 1,70 1,80 11,1 Menor que 1,12 0,63 0,79 0,97 1,12 1,12 e acima 0,43 0,53 0,63 0,74 0,86 0,97 1,07 1,17 1,27 1,37 1,50 1,60 1,70 1,80 12,7 Menor que 1,27 0,63 0,79 0,97 1,12 1,27 1,27 e acima 0,43 0,53 0,63 0,74 0,86 0,97 1,07 1,17 1,27 1,37 1,50 1,60 1,70 1,80 14,3 Menor que 1,42 0,63 0,79 0,97 1,12 1,27 1,42 1,42 e acima 0,43 0,53 0,63 0,74 0,86 0,97 1,07 1,17 1,27 1,37 1,50 1,60 1,70 1,80 15,9 Menor que 1,60 0,63 0,79 0,97 1,12 1,27 1,42 1,60 1,60 e acima 0,43 0,53 0,63 0,74 0,86 0,97 1,07 1,17 1,27 1,37 1,50 1,60 1,70 1,80 Variação Máxima Permissível milímetros 6 8 10 11 12 16 14 16 18 20 21 24 25 27 Observação: Para dimensões reais não exibidas, use a figura mais alta a seguir.
  • 325.
    AWS D1.1/D1.1M:2010 ANEXOE 305 Esta página está intencionalmente em branco
  • 326.
    AWS D1.1/D1.1M:2010 306 Anexo E(Normativo) Aplainamento de Braçadeiras de Trave—Estruturas Ciclicamente Carregadas Esse anexo é parte de D1.1/D1.1M:2010, Código de Soldagem Estrutural - Aço, da AWS, e inclui elementos obrigatórios para uso com esse padrão. Observações: 1. D = Profundidade de braçadeira. 2. d = Menor dimensão do painel.
  • 327.
    AWS D1.1/D1.1M:2010 ANEXOE 307 Tabela E.1 Reforços Intermediários em Ambos os Lados de Braçadeira. Traves Interiores Espessura de Braçadeira in Profundidade de Braçadeira in Menor Dimensão do Painel in 5/16 Menor que 47 29 36 43 50 47 e acima 23 29 35 40 46 52 58 63 69 75 81 86 92 98 3/8 Menor que 56 29 36 43 50 58 56 e acima 23 29 35 40 46 52 58 63 69 75 81 86 92 98 7/16 Menor que 66 29 36 43 50 58 65 66 e acima 23 29 35 40 46 52 58 63 69 75 81 86 92 98 1/2 Menor que 75 29 36 43 50 58 65 72 79 75 e acima 23 29 35 40 46 52 58 63 69 75 81 86 92 98 9/16 Menor que 84 29 36 43 50 58 65 72 79 86 84 e acima 23 29 35 40 46 52 58 63 69 75 81 86 92 98 5/8 Menor que 94 94 e acima 29 36 43 50 58 65 72 86 93 23 29 35 40 46 52 58 63 69 75 81 86 92 98 Variação Máxima Permissível In 1/4 5/16 3/8 7/16 1/2 9/16 5/8 11/16 3/4 13/16 7/8 15/16 1 1-1/16 Espessura de Braçadeira mm Profundidade de Braçadeira m Menor Dimensão do Painel metros 8,0 Menor que 1,19 0,74 0,91 1,09 1,27 1,19 e acima 0,58 0,74 0,89 1,02 1,17 1,32 1,47 1,60 1,75 1,90 2,06 2,18 2,34 2,49 9,5 Menor que 1,42 0,74 0,91 1,09 1,27 1,47 1,42 e acima 0,58 0,74 0,89 1,02 1,17 1,32 1,47 1,60 1,75 1,90 2,06 2,18 2,34 2,49 11,1 Menor que 1,68 0,74 0,91 1,09 1,27 1,47 1,65 1,68 e acima 0,58 0,74 0,89 1,02 1,17 1,32 1,47 1,60 1,75 1,90 2,06 2,18 2,34 2,49 12,7 Menor que 1,90 0,74 0,91 1,09 1,27 1,47 1,65 1,83 2,00 1,90 e acima 0,58 0,74 0,89 1,02 1,17 1,32 1,47 1,60 1,75 1,90 2,06 2,18 2,34 2,49 14,3 Menor que 2,13 0,74 0,91 1,09 1,27 1,47 1,65 1,83 2,00 2,18 2,13 e acima 0,58 0,74 0,89 1,02 1,17 1,32 1,47 1,60 1,75 1,90 2,06 2,18 2,34 2,49 15,9 Menor que 2,39 0,74 0,91 1,09 1,27 1,47 1,65 1,83 2,00 2,18 2,36 2,39 e acima 0,58 0,74 0,89 1,02 1,17 1,32 1,47 1,60 1,75 1,90 2,06 2,18 2,34 2,49 Variação Máxima Permissível Milímetros 6 8 10 11 12 16 14 16 18 20 21 24 25 27 Observação: Para dimensões reais não exibidas, use a figura mais alta a seguir.
  • 328.
    AWS D1.1/D1.1M:2010 ANEXOE 308 Tabela E.2 Reforços Intermediários em Apenas Um Lado de Braçadeira. Traves Frontais Espessura de Braçadeira in Profundidade de Braçadeira in Menor Dimensão do Painel in 5/16 Menor que 31 30 38 31 e acima 20 25 30 35 40 45 50 55 60 65 70 75 80 85 3/8 Menor que 38 30 38 38 e acima 20 25 30 35 40 45 50 55 60 65 70 75 80 85 7/16 Menor que 44 30 38 45 44 e acima 20 25 30 35 40 45 50 55 60 65 70 75 80 85 1/2 Menor que 50 30 38 45 53 50 e acima 20 25 30 35 40 45 50 55 60 65 70 75 80 85 9/16 Menor que 56 30 38 45 53 60 56 e acima 20 25 30 35 40 45 50 55 60 65 70 75 80 85 5/8 Menor que 63 63 e acima 30 38 45 53 60 68 20 25 30 35 40 45 50 55 60 65 70 75 80 85 Variação Máxima Permissível in 1/4 5/16 3/8 7/16 1/2 9/16 5/8 11/16 3/4 13/16 7/8 15/16 1 1-1/16 Espessura de Braçadeira mm Profundidade de Braçadeira m Menor Dimensão do Painel metros 8,0 Menor que 1,19 0,76 0,97 1,19 e acima 0,51 0,63 0,76 0,89 1,02 1,14 1,27 1,40 1,52 1,65 1,78 1,90 2,03 2,16 9,5 Menor que 1,42 0,76 0,97 1,42 e acima 0,51 0,63 0,76 0,89 1,02 1,14 1,27 1,40 1,52 1,65 1,78 1,90 2,03 2,16 11,1 Menor que 1,68 0,76 0,97 1,14 1,68 e acima 0,51 0,63 0,76 0,89 1,02 1,14 1,27 1,40 1,52 1,65 1,78 1,90 2,03 2,16 12,7 Menor que 1,90 0,76 0,97 1,14 1,35 1,90 e acima 0,51 0,63 0,76 0,89 1,02 1,14 1,27 1,40 1,52 1,65 1,78 1,90 2,03 2,16 14,3 Menor que 2,13 0,76 0,97 1,14 1,35 1,52 2,13 e acima 0,51 0,63 0,76 0,89 1,02 1,14 1,27 1,40 1,52 1,65 1,78 1,90 2,03 2,16 15,9 Menor que 2,39 0,76 0,97 1,14 1,35 1,52 1,73 2,39 e acima 0,51 0,63 0,76 0,89 1,02 1,14 1,27 1,40 1,52 1,65 1,78 1,90 2,03 2,16 Variação Máxima Permissível milímetros 6 8 10 11 12 16 14 16 18 20 21 24 25 27 Observação: Para dimensões reais não exibidas, use a figura mais alta a seguir.
  • 329.
    AWS D1.1/D1.1M:2010 ANEXOE 309 Tabela E.3 Reforços Intermediários em Apenas Um Lado de Braçadeira. Traves Interiores Espessura de Braçadeira in Profundidade de Braçadeira in Menor Dimensão do Painel in 5/16 Menor que 31 25 31 31 e acima 17 21 25 29 34 38 42 46 50 54 59 63 67 71 3/8 Menor que 38 25 31 38 38 e acima 17 21 25 29 34 38 42 46 50 54 59 63 67 71 7/16 Menor que 44 25 31 38 44 44 e acima 17 21 25 29 34 38 42 46 50 54 59 63 67 71 1/2 Menor que 50 25 31 38 44 50 50 e acima 17 21 25 29 34 38 42 46 50 54 59 63 67 71 9/16 Menor que 56 25 31 38 44 50 56 56 e acima 17 21 25 29 34 38 42 46 50 54 59 63 67 71 5/8 Menor que 63 63 e acima 25 31 38 44 50 56 63 17 21 25 29 34 38 42 46 50 54 59 63 67 71 Variação Máxima Permissível in 1/4 5/16 3/8 7/16 1/2 9/16 5/8 11/16 3/4 13/16 7/8 15/16 1 1-1/16 Espessura de Braçadeira mm Profundidade de Braçadeira m Menor Dimensão do Painel metros 8,0 Menor que 0,78 0,63 0,79 0,78 e acima 0,43 0,53 0,63 0,74 0,86 0,97 1,07 1,17 1,27 1,37 1,50 1,60 1,70 1,80 9,5 Menor que 0,97 0,63 0,79 0,97 0,97 e acima 0,43 0,53 0,63 0,74 0,86 0,97 1,07 1,17 1,27 1,37 1,50 1,60 1,70 1,80 11,1 Menor que 1,12 0,63 0,79 0,97 1,12 1,12 e acima 0,43 0,53 0,63 0,74 0,86 0,97 1,07 1,17 1,27 1,37 1,50 1,60 1,70 1,80 12,7 Menor que 1,27 0,63 0,79 0,97 1,12 1,27 1,27 e acima 0,43 0,53 0,63 0,74 0,86 0,97 1,07 1,17 1,27 1,37 1,50 1,60 1,70 1,80 14,3 Menor que 1,42 0,63 0,79 0,97 1,12 1,27 1,42 1,42 e acima 0,43 0,53 0,63 0,74 0,86 0,97 1,07 1,17 1,27 1,37 1,50 1,60 1,70 1,80 15,9 Menor que 1,60 0,63 0,79 0,97 1,12 1,27 1,42 1,60 1,60 e acima 0,43 0,53 0,63 0,74 0,86 0,97 1,07 1,17 1,27 1,37 1,50 1,60 1,70 1,80 Variação Máxima Permissível milímetros 6 8 10 11 12 16 14 16 18 20 21 24 25 27 Observação: Para dimensões reais não exibidas, use a figura mais alta a seguir.
  • 330.
    AWS D1.1/D1.1M:2010 ANEXOE 310 Tabela E.4 Reforços Intermediários em Ambos os Lados de Braçadeira. Traves Frontais Espessura de Braçadeira in Profundidade de Braçadeira in Menor Dimensão do Painel in 5/16 Menor que 47 33 41 49 47 e acima 26 33 39 47 53 59 66 71 79 85 92 98 105 112 3/8 Menor que 56 33 41 49 57 56 e acima 26 33 39 47 53 59 66 71 79 85 92 98 105 112 7/16 Menor que 66 33 41 49 57 65 73 66 e acima 26 33 39 47 53 59 66 71 79 85 92 98 105 112 1/2 Menor que 75 33 41 49 57 65 73 81 75 e acima 26 33 39 47 53 59 66 71 79 85 92 98 105 112 9/16 Menor que 84 33 41 49 57 65 73 81 89 84 e acima 26 33 39 47 53 59 66 71 79 85 92 98 105 112 5/8 Menor que 94 94 e acima 33 41 49 57 65 73 81 89 98 26 33 39 47 53 59 66 71 79 85 92 98 105 112 Variação Máxima Permissível in 1/4 5/16 3/8 7/16 1/2 9/16 5/8 11/16 3/4 13/16 7/8 15/16 1 1-1/16 Espessura de Braçadeira mm Profundidade de Braçadeira m Menor Dimensão do Painel metros 8,0 Menor que 1,19 0,84 1,04 1,24 1,19 e acima 0,66 0,84 0,99 1,19 1,35 1,50 1,68 1,83 2,01 2,16 2,34 2,49 2,67 2,84 9,5 Menor que 1,42 0,84 1,04 1,24 1,45 1,42 e acima 0,66 0,84 0,99 1,19 1,35 1,50 1,68 1,83 2,01 2,16 2,34 2,49 2,67 2,84 11,1 Menor que 1,68 0,84 1,04 1,24 1,45 1,65 1,85 1,68 e acima 0,66 0,84 0,99 1,19 1,35 1,50 1,68 1,83 2,01 2,16 2,34 2,49 2,67 2,84 12,7 Menor que 1,90 0,84 1,04 1,24 1,45 1,65 1,85 2,06 1,90 e acima 0,66 0,84 0,99 1,19 1,35 1,50 1,68 1,83 2,01 2,16 2,34 2,49 2,67 2,84 14,3 Menor que 2,13 0,84 1,04 1,24 1,45 1,65 1,85 2,06 2,26 2,13 e acima 0,66 0,84 0,99 1,19 1,35 1,50 1,68 1,83 2,01 2,16 2,34 2,49 2,67 2,84 15,9 Menor que 2,39 0,84 1,04 1,24 1,45 1,65 1,85 2,06 2,26 2,49 2,39 e acima 0,66 0,84 0,99 1,19 1,35 1,50 1,68 1,83 2,01 2,16 2,34 2,49 2,67 2,84 Variação Máxima Permissível milímetros 6 8 10 11 12 16 14 16 18 20 21 24 25 27 Observação: Para dimensões reais não exibidas, use a figura mais alta a seguir. Tabela E.5 Sem Reforços Intermediários. Traves Frontais ou Interiores Espessura de Braçadeira in Profundidade de Braçadeira in Qualquer 38 47 56 66 75 84 94 103 113 122 131 141 150 159 169 178 188 Variação Máxima Permissível in 1/4 5/16 3/8 7/16 1/2 9/16 5/8 11/16 3/4 13/16 7/8 15/16 1 1-1/16 1-1/8 1-3/16 1-1/4 Espessura de Braçadeira mm Profundidade de Braçadeira metros Qualquer 0,97 1,19 1,42 1,68 1,90 2,13 2,39 2,62 2,87 3,10 3,33 3,58 3,81 4,04 4,29 4,52 4,77 Variação Máxima Permissível milímetros 6 8 10 11 12 14 16 18 20 21 22 24 25 27 29 30 32 Observação: Para dimensões reais não exibidas, use a figura mais alta a seguir
  • 331.
    AWS D1.1/D1.1M:2010 311 Esta páginaestá intencionalmente em branco
  • 332.
    AWS D1.1/D1.1M:2010 312 Anexo F(Normativo) Gráficos de Conteúdo de Temperatura-Umidade Esse anexo é parte de D1.1/D1.1M:2010, Código de Soldagem Estrutural - Aço, da AWS, e inclui elementos obrigatórios para uso com esse padrão.
  • 333.
    ANEXO F AWSD1.1/D1.1M:2010 313 Observações: 1. Qualquer gráfico psicrométrico pode ser usado em lugar deste gráfico. 2. Ver Figura F.2 para um exemplo da aplicação desse gráfico no estabelecimento de condições de exposição de eletrodo Figura F.1 - Gráfico de Conteúdo de Temperatura-Umidade a ser Usado em Conjunção com Programa de Teste para Determinar Tempo Estendido de Exposição Atmosférica de Eletrodos SMAW de Baixo Hidrogênio (ver 5.3.2.3)
  • 334.
    ANEXO F AWSD1.1/D1.1M:2010 314 Figura F.2 - Aplicação de Gráfico de Conteúdo de Temperatura-Umidade na Determinação de Tempo de Exposição Atmosférica de Eletrodos SMAW de Baixo Hidrogênio (ver 5.3.2.3)
  • 335.
    AWS D1.1/D1.1M:2010 315 Esta páginaestá intencionalmente em branco
  • 336.
    AWS D1.1/D1.1M:2010 316 Anexo G(Normativo) Requisitos de Qualificação de Fabricante de Base de Pinos AS PROVISÕES DESSE ANEXO COMO MOSTRADAS EM EDIÇÕES ANTERIORES DE D1.1/D1.1M DA AWS FORAM MOVIDAS PARA A CLÁUSULA 7.9.
  • 337.
    AWS D1.1/D1.1M:2010 317 Esta páginaestá intencionalmente em branco
  • 338.
    AWS D1.1/D1.1M:2010 318 Anexo H(Normativo) Qualificação e Calibragem de Unidades UT com Outros Blocos de Referência Aprovados (ver Figura H.1) Esse anexo é parte de D1.1/D1.1M:2010, Código de Soldagem Estrutural - Aço, da AWS, e inclui elementos obrigatórios para uso com esse padrão. H1. Modo Longitudinal H1.1 Calibragem de Distância. H1.1.1 O transdutor deve ser colocado na posição H no bloco DC, ou M no bloco DSC. H1.1.2 O instrumento deve ser ajustado para produzir indicações em 1 in [25 mm], 2 in [50 mm], 3 in [75 mm], 4 in [100 mm], etc., no visor. OBSERVAÇÃO: Esse procedimento estabelece uma calibragem de tela de 10 in [250 mm] e pode ser modificado para estabelecer outras distâncias como permitido por 6.25.4.1. H1.2 Amplitude. Com o transdutor na posição descrita em H1.1, o ganho deve ser ajustado até que a indicação maximizada do primeiro reflexo de retorno alcance 50% a 75% da altura de tela. H2. Modo de Onda de Cisalhamento (Transversal) H2.1 Verificação de Ponto de Entrada de Som (Índice) H2.1.1 A unidade de busca deve ser colocada na posição J ou L no bloco DSC, ou I no bloco DC. H2.1.2 S unidade de busca deve ser movida até que o sinal do raio esteja maximizado. H2.1.3 O ponto na Unidade de Busca que está alinhado com a linha no bloco de calibragem é indicativo do ponto de entrada de som. OBSERVAÇÃO: Esse ponto de entrada de som deve ser usado para todas as demais verificações de distância e ângulo. H2.2 Verificação de Ângulo de Caminho de Som H2.2.1 O transdutor deve ser colocado em posição: K no bloco DSC para 45° a 70° N no bloco SC para 70° O no bloco SC para 45° P no bloco SC para 60° H2.2.2 O transdutor deve ser movido para a frente e para trás sobre a linha indicativa do ângulo transdutor até que o sinal do raio seja maximizado.
  • 339.
    AWS D1.1/D1.1M:2010 ANEXO H 319 H2.2.3O ponto de entrada de som no transdutor deve ser comparado com a marca de ângulo no bloco de calibragem (tolerância de 2º). H2.3 Calibragem de Distância. H2.3.1 O transdutor deve estar na posição L (Figura H.1) no bloco DSC. O instrumento deve ser ajustado para produzir indicações em 3 in [75 mm] e 7 in [180 mm] no visor. O transdutor deve ser colocado na posição J no bloco DSC (qualquer ângulo). O instrumento deve ser ajustado para produzir indicações em 1 in [25 mm], 5 in [125 mm], 9 in [230 mm] no visor H2.3.3 O transdutor deve ser colocado na posição I no bloco DC (qualquer ângulo). O instrumento deve ser ajustado para alcançar indicação em 1 in [25 mm], 2 in [50 mm], 3 in [75 mm], 4 in [100 mm], etc., no visor. OBSERVAÇÃO: Esse procedimento estabelece uma calibragem de tela de 10 in [250 mm] e pode ser modificado para estabelecer outras distâncias como permitido por 6.25.5.1. H2.4 Calibragem de Sensibilidade ou Amplitude. H2.4.1 O transdutor deve ser colocado na posição L no bloco DSC (qualquer ângulo). O sinal maximizado deve ser ajustado a a partir do tampão 1/32 in [0,8 mm] para alcançar uma indicação de altura de linha de referência horizontal. H2.4.2 O transdutor deve ser colocado no bloco SC na posição: N para ângulo de 70° O para ângulo de 45° P para ângulo de 60° O sinal maximizado do orifício de 1/16 in [1,6 mm] deve ser ajustado para alcançar uma indicação de altura de linha de referência horizontal. H2.4.3 A leitura decibel obtida em H2.4.1 ou H2.4.2 deve ser usada como "nível de referência" "b" na planilha de Relatório de Teste (Anexo M, Formulário M-11) em conformidade com 6.23.1. H3. Procedimento de Linearidade Horizontal OBSERVAÇÃO: Como esse procedimento de qualificação é realizado com uma unidade de busca de feixe direto que produz ondas longitudinais com uma velocidade de som que é quase o dobro de ondas de cisalhamento, é necessário dobrar as faixas de distância de onda de cisalhamento a serem usadas ao aplicar esse procedimento. H3.1 Uma unidade de busca de feixe direto atendendo os requisitos de 6.22.6 deve ser acoplada na posição: G no tipo de bloco IIW (Figura 6.23) H no bloco DC (Figura H.1) M no bloco DC (Figura H.1) T ou U no bloco DS (Figura 6.23) H3.2 Um mínimo de cinco reflexos de retorno na faixa de qualificação sendo certificada deve ser alcançado. H3.3 O primeiro e o quinto reflexos de retorno devem ser ajustados a seus próprios locais com uso da calibragem de distância e zero ajustes de atraso. H3.4 Cada indicação deve ser ajustada ao nível de referência com o controle de ganho ou atenuação para exame local horizontal. H3.5 Cada local de deflexão de traço intermediário deve ser corrigida no âmbito de mais ou menos ± 2% da largura da tela.
  • 340.
    AWS D1.1/D1.1M:2010 ANEXOH 320 Observações: 1. A tolerância dimensional entre todas as superfícies envolvidas em referência ou calibragem deve ser dentro de ±0,005 in de dimensão detalhada. 2. O acabamento de superfície de todas as superfícies nas quais som é aplicado ou a partir da qual é refletido deve ter um máximo de 125 μin r.m.s. 3. Todo material deve ser A 36 da ASTM ou acusticamente equivalente. 4. Todos os orifícios devem ter um acabamento interno liso e devem ser perfurados a 90 da superfície do material. 5. Linhas de grau e marcas de identificação devem ser entalhadas na superfície do material de forma que orientação permanente possa ser mantida. Figura H.1 - Outros Blocos Aprovados e Posição de Transdutor Típica (ver H2.3.1)
  • 341.
    AWS D1.1/D1.1M:2010 ANEXOH 321 Observações: 1. A tolerância dimensional entre todas as superfícies envolvidas em referência ou calibragem deve ser dentro de ±0,13 mm de dimensão detalhada. 2. O acabamento de superfície de todas as superfícies nas quais som é aplicado ou a partir da qual é refletido deve ter um máximo de 3,17 μn r.m.s. 3. Todo material deve ser A 36 da ASTM ou acusticamente equivalente. 4. Todos os orifícios devem ter um acabamento interno liso e devem ser perfurados a 90 da superfície do material. 5. Linhas de grau e marcas de identificação devem ser entalhadas na superfície do material de forma que orientação permanente possa ser mantida. Figura H.1 (Continuação) - Outros Blocos Aprovados e Posição de Transdutor Típica (ver H2.3.1) (Métrico)
  • 342.
    AWS D1.1/D1.1M:2010 322 Anexo I(Normativo) Orientação sobre Métodos Alternativos de Determinar Pré-Aquecimento Esse anexo é parte de Dl.1/D1.1M:2010, Código de Soldagem Estrutural - Aço, da AWS e inclui elementos obrigatórios para uso com esse padrão. I1. Introdução O propósito desse guia é fornecer alguns métodos alternativos opcionais para determinar condições de soldagem (principalmente pré-aquecimento) para evitar trinca de resfriamento. Os métodos são baseados primariamente em pesquisa em teste de pequena escala conduzidos por muitos anos em vários laboratórios ao redor do mundo. Nenhum método está disponível para prever condições ideais em todos os casos, mas o guia considera vários fatores importantes tais como nível de hidrogênio e composição de aço não inclusos implicitamente nos requisitos da Tabela 3.2. O guia pode portanto ser de valor para indicar se os requisitos da Tabela 3.2 são excessivamente conservadores ou em alguns casos não suficientemente exigentes. O usuário é direcionado ao Comentário para uma apresentação mais detalhada do histórico científico e informações de pesquisa que conduzem aos dois métodos propostos. Ao usar esse guia como uma alternativa à Tabela 3.2, as suposições feitas, os valores selecionados e a experiência passada devem ser cuidadosamente considerados. I2. Métodos Dois métodos são usados como base para estimar condições de soldagem para evitar trincas de resfriamento: (1) controle de dureza HAZ (2) Controle de hidrogênio I3. Controle de Rigidez HAZ I3.1 As provisões incluídas nesse guia para uso desse método são restritas a soldas de filete. I3.2 Esse método é baseado na suposição de que trincas não ocorrerão se a rigidez do HAZ for mantida abaixo de algum valor crítico. Isso é alcançado pelo controle da taxa de resfriamento abaixo de um valor crítico dependendo da temperabilidade do aço. A temperabilidade do aço na soldagem relaciona-se a sua propensão em direção à formação de um HAZ rígido e pode ser caracterizado pela taxa de resfriamento necessária para produzir um dado nível de rigidez. Aços com alta temperabilidade podem, portanto, produzir HAZ rígido a taxas mais lentas de resfriamento que um aço com temperabilidade mais baixa. Equações e gráficos estão disponíveis na literatura técnica que relaciona a taxa de resfriamento da solda à espessura dos membros de aço, tipo de junta, condições e variáveis de soldagem. I3.3 A seleção de rigidez crítica dependerá de um número de fatores tais como tipo de aço, nível de hidrogênio, restrição e condições de serviço. Testes de laboratório com soldas de filete mostram que trinca HAZ não ocorre se o Número de Dureza de Vickers (HV) do HAZ é menor que 350 HV, mesmo com eletrodos de alto hidrogênio. Com eletrodos de baixo hidrogênio, rigidez de 400 HV poderia ser tolerado sem
  • 343.
    AWS D1.1/D1.1M:2010 ANEXOH 323 trincas. Tal rigidez, no entanto, pode não ser tolerável em serviço em que haja risco de trinca de corrosão por tensão, iniciação de fratura quebradiça ou outros riscos para a segurança ou habilidade de Serviço da estrutura.
  • 344.
    AWS D1.1/D1.1M:2010 ANEXOI 324 A taxa de resfriamento crítica para uma dada rigidez pode ser aproximadamente relacionada ao carbono equivalente (CE) do aço (ver Figura 1.2). Como a relação é apenas aproximada, a curva mostrada na Figura I.2 pode ser conservadora para aços de carbono simples e de carbono simples-manganésio e assim ´permitir o uso da curva de rigidez alta com menos risco. Alguns aços de baixa liga, particularmente aqueles contendo columbium (nióbio) podem ser mais temperáveis que a Figura 1.2 indica, e o uso da curva de rigidez mais baixa é recomendada. I3.4 Embora o método possa ser usado para determinar um nível de pré-aquecimento, seu principal valor está em determinar a entrada mínima de calor (e consequentemente o tamanho mínimo de solda) que evita enrijecimento excessivo. É particularmente útil para determinar o tamanho mínimo de soldas de filete em passe único que pode ser depositado sem pré- aquecimento. I3.5 A abordagem de rigidez não considera a possibilidade de trinca de metal de solda. No entanto, por experiência é descoberto que a entrada de calor determinada por esse método é normalmente adequada para prevenir trinca de metal de solda, na maioria dos casos, em soldas de filete se o eletrodo não é um metal de adição de alta resistência e é geralmente de um tipo de baixo hidrogênio [por exemplo, eletrodo de baixo hidrogênio (SMAW), GMAW, FCAW, SAW]. I3.6 Porque o método depende exclusivamente de controlar a rigidez HAZ, o nível e restrição de hidrogênio não são explicitamente considerados. I3.7 Esse método não é aplicável a aços resfriados e temperados [ver 15.2(3) para limitações]. I4. Controle de Hidrogênio I4.1 O método de controle de hidrogênio é baseado na suposição de que trincas não ocorrerão se a quantidade média de hidrogênio permanecendo na junta depois que esta resfriou a cerca de 120ºF [50ºC] não exceder um valor crítico dependente da composição do aço e das restrições. O pré-aquecimento necessário para permitir hidrogênio suficiente para dissipar-se da junta pode ser estimado usando esse método. I4.2 Esse método é baseado principalmente em resultados de testes em soldas de chanfro PJP restritos; o metal de solda usado nos testes deve corresponder ao metal matriz. Não houve testes extensivos desse método em soldas de filete; no entanto, ao permitir restrições, o método tem sido adequadamente adaptado para essas soldas. I4.3 Uma determinação do nível de restrição e do nível de hidrogênio original na poça de fusão é requerida para o método de hidrogênio. Nesse guia, restrição é classificada como alta, média e baixa, e a categoria precisa ser estabelecida por experiência. I4.4 O método de controle de hidrogênio é baseado em um único cordão de solda de baixa entrada de calor representando um passe de raiz e assume que o HAZ enrijece. O método é, portanto, particularmente útil para resistência alta, aços de baixa liga tendo temperabilidade alta, quando o controle de rigidez não é sempre praticável. Consequentemente, porque assume que o HAZ enrijece completamente, o pré-aquecimento previsto pode ser muito conservador para aços carbono. I5. Seleção de Método I5.1 O seguinte procedimento é recomendado como um guia para seleção de método de controle de rigidez ou de controle de hidrogênio. Determinar carbono e carbono equivalente: ( ) ( ) ( ) para localizar a posição de zona do aço na Figura 1.1 (ver 16.1.1 para as diferentes formas de obter análise química). I5.2 As características de desempenho de cada zona e a ação recomendada são como segue: (1) Zona I. Trincas são improváveis, mas podem ocorrer com alto hidrogênio ou alta restrição. Use método de controle de hidrogênio para determinar pré- aquecimento para aços nessa zona. (2) Zona II. O método de controle de rigidez e rigidez selecionada devem ser usados para determinar entrada mínima de energia para soldas de filete em passe único sem pré-aquecimento. Se a entrada de energia não é prática, use o método de hidrogênio para determinar pré-aquecimento. Para soldas em chanfro, o método de controle de hidrogênio deve ser usado para determinar pré- aquecimento. Para aços com carbono alto, uma energia mínima para controlar rigidez e pré-aquecimento para controlar hidrogênio pode ser requerida para ambos os tipos de solda, isto é, soldas em chanfro e de filete. (3) Zona III. O método de controle de hidrogênio deve ser usado. Quando a entrada de calor é restrita para preservar as propriedades HAZ (por exemplo, alguns aços resfriados e temperados), o método de controle de hidrogênio deveria ser usado para determinar pré-aquecimento.
  • 345.
    ANEXO I AWSD1.1/D1.1M:2010 325 I6. Guia Detalhado I6.1 Método de Rigidez I6.1.1 O equivalente de carbono deve ser calculado como segue: ( ) ( ) ( ) A análise química deve ser obtida de: (1) Certificados de teste da fábrica (2) Química de produção típica (da fábrica) (3) Química de especificação (usando valores máximos) (4) Testes de usuário (análise química) I6.1.2 A taxa de resfriamento crítica deve ser determinada por uma rigidez máxima selecionada de HAZ de 400 HV ou 350 HV da Figura L2. I6.1.3 Usando Espessuras aplicáveis para placas de "flange" e "braçadeira", o diagrama apropriado deve ser selecionado da Figura I.3 e a entrada mínima de energia para soldas de filete de passe único deve ser determinada. Essa entrada de energia aplica-se a soldas SAW. I6.1.4 Para outros processos, a entrada mínima de energia para soldas de filete de passe único pode ser estimada ao aplicar os seguintes fatores de multiplicação à energia estimada para o processo SAW em I6.1.3. Processo de Soldagem Fator de Multiplicação SAW 1 SMAW 1,50 GMAW, FCAW 1,25 I6.1.5 A Figura I.4 pode ser usada para determinar tamanhos de filete como uma função de entrada de energia. I6.2 Método de Controle do Hidrogênio I6.2.1 O valor do parâmetro de composição, Pcm, deve ser calculado como segue: Pcm = A análise química deve ser determinada e deve ser definida como segue: I6.2.2 O nível de hidrogênio deve ser determinado e deve ser definido como segue: (1) Hidrogênio Extra Baixo. Esses consumíveis dão um conteúdo difusível de hidrogênio de menos que 5ml/100g de metal depositado quando medidos usando ISO 3690-1976, ou um conteúdo de umidade de cobertura de eletrodo de 0,2% no máximo, em conformidade com A5.1 ou A5.5 da AWS. Isso pode ser estabelecido ao testar cada tipo, marca ou combinação arame/fluxo usados após a remoção do pacote ou contêiner e exposição pela duração pretendida, com a devida consideração por condições de armazenamento reais antes do uso imediato. O seguinte pode ser admitido para atender esse requisito: (a) Eletrodos de baixo hidrogênio tirados de contêineres hermeticamente vedados, secos a 700ºF- 800ºF [370º-430º] por uma hora e usados dentro de duas horas após a remoção. (b) GMAW com arames limpos e sólidos. (2) H2 Baixo Hidrogênio. Esses consumíveis dão um conteúdo difusível de hidrogênio de menos que 10 ml/100g de metal depositado quando medidos usando ISO 3690-1976, ou um conteúdo de umidade de cobertura de eletrodo de 0,4% no máximo, em conformidade com A5.1 da AWS. Isso pode ser estabelecido por um teste de cada tipo, marca de consumível ou combinação arame/fluxo usado. O seguinte pode ser admitido para atender esse requisito: (a) Eletrodos de baixo hidrogênio tirados de contêineres hermeticamente vedados acondicionados em conformidade com 5.3.2.1 do código e usados dentro de quatro horas após a remoção. (b) SAW com fluxo seco. (3) H3 Hidrogênio Não Controlado. Todos os outros consumíveis não atendendo os requisitos de H1 ou H2. I6.2.3 O agrupamento de índice de sensibilidade da Tabela I.1 deve ser determinado. I6.2.4 Níveis Mínimos de Pré-aquecimento e Interpasse. A Tabela I.2 dá o pré-aquecimento mínimo e temperatura de interpasse que devem ser usados. A Tabela I.2 dá três níveis de restrição. O nível de restrição a ser usado deve ser determinado em conformidade com I6.2.5. I6.2.5 Restrição. A classificação de tipos de soldas em vários níveis de restrição deveria ser determinada com base na experiência, julgamento de engenharia, pesquisa ou cálculo. Três níveis de restrição foram fornecidos: (1) Restrição Baixa. Esse nível descreve juntas soldadas em chanfro ou de filete comuns nas quais uma liberdade razoável de movimento de membros existe. (2) Restrição Média. Esse nível descreve juntas soldadas de filete e em chanfro nas quais, por causa dos membros já serem soldados ao trabalho estrutural, uma liberdade reduzida de movimentos existe. (3) Restrição Alta. Esse nível descreve soldas nas quais quase não há liberdade de movimento para membros juntados (como soldas de reparo, especialmente em material espesso).
  • 346.
    AWS D1.1/D1.1M:2010 ANEXOI 326 Tabela I.1 Grupamento de Índice de Suscetibilidade como Função de Nível de Hidrogênio “H” e Parâmetro de Composição Pcm (ver I6.2.3) Grupamento de Índiceb de Suscetibilidadec Carbono Equivalente = Nível de Hidrogênio, H < 0,18 < 0,23 < 0,28 < 0,33 < 0,38 H1 A B C D E H2 B C D E F H3 C D E F G a Pcm b Índice de suscetibilidade—12 Pcm + log10 H. c Agrupamentos de Índice de Suscetibilidade, de A a G, abrangem o efeito combinado do parâmetro de composição, Pcm, e nível de hidrogênio, H, em conformidade com a fórmula mostrada na Nota b. As quantidades numéricas exatas são obtidas da fórmula da Nota b usando os valores estabelecidos de Pcm e os seguintes valores de H, dados em ml/100g de metal de solda [ver I6.2.2, (1), (2), (3)]: H1—5; H2—10; H3—30. Para maior conveniência, os Agrupamentos de Índice de Suscetibilidade foram expressos na tabela por meio de letras, de A a G, para cobrir as seguintes faixas estreitas: A = 3,0; B = 3,1–3,5; C = 3,6–4,0; D = 4,1–4,5; E = 4,6–5,0; F = 5,1–5,5; G = 5,6–7,0 Esses agrupamentos são usados na Tabela I.2 em conjunção com restrição e espessura para determinar o pré-aquecimento mínimo e a temperatura de interpasse. Tabela I.2 Temperaturas Mínimas de Pré-aquecimento e Interpasse para Três Níveis de Restrição (ver I6.2.4) Restrição Nível Espessuraa in Pré-aquecimento Mínimo e Temperatura de Interpasse ( °F)b Agrupamento de Índice de Suscetibilidade A B C D E F G < 3/8 < 65 < 65 < 65 < 65 140 280 300 3/8–3/4 incl < 65 < 65 65 140 210 280 300 Baixo > 3/4–1-1/2 incl < 65 < 65 65 175 230 280 300 > 1-1/2–3 incl 65 65 100 200 250 280 300 > 3 65 65 100 200 250 280 300 < 3/8 < 65 < 65 < 65 < 65 160 280 320 3/8–3/4 incl < 65 < 65 65 175 240 290 320 Médio > 3/4–1-1/2 incl < 65 65 165 230 280 300 320 > 1-1/2–3 incl 65 175 230 265 300 300 320 > 3 200 250 280 300 320 320 320 < 3/8 < 65 < 65 < 65 100 230 300 320 3/8–3/4 incl < 65 65 150 220 280 320 320 Alto > 3/4–1-1/2 incl 65 185 240 280 300 320 320 > 1-1/2–3 incl 240 265 300 300 320 320 320 > 3 240 265 300 300 320 320 320 (Continua) a A espessura é aquela da parte mais grossa soldada. b “<” indica que temperaturas de pré-aquecimento e interpasse mais baixas que a temperatura mostrada podem ser adequadas para evitar trinca de hidrogênio. Temperaturas de pré-aquecimento e interpasse que sejam ambas mais baixas que a temperatura listada e mais baixas que a Tabela 3.2 devem ser qualificadas por teste.
  • 347.
    AWS D1.1/D1.1M:2010 ANEXOI 327 Tabela I.2.9 (Continuação) Temperaturas Mínimas de Pré-aquecimento e Interpasse para Três Níveis de Restrição (ver I6.2.4) Restrição Nível Espessuraa mm Pré-aquecimento Mínimo e Temperatura de Interpasse ( °C)b Agrupamento de Índice de Suscetibilidade A B C D E F G < 10 < < 20 < 20 < 20 < 20 60 140 150 10–20 incl < 20 < 20 20 60 100 140 150 Baixo > 20–38 incl < 20 < 20 20 80 110 140 150 > 38-75 incl 20 20 40 95 120 140 150 > 75< 20 20 40 95 120 140 150 < 10 < < 20 < 20 < 20 < 20 70 140 160 10–20 incl < 20 < 20 20 80 115 145 160 Médio > 20-38 incl 20 20 75 110 140 150 160 > 38-75 incl 20 80 110 130 150 150 160 > 75< 95 120 140 150 160 160 160 < 10 < < 20 < 20 20 40 110 150 160 10–20 incl < 20 20 65 105 140 160 160 Alto > 20-38 incl 20 85 115 140 150 160 160 > 38-75 incl 115 130 150 150 160 160 160 > 75< 115 130 150 150 160 160 160 a A espessura é aquela da parte mais grossa soldada. b “<” indica que temperaturas de pré-aquecimento e interpasse mais baixas que a temperatura mostrada podem ser adequadas para evitar trinca de hidrogênio. Temperaturas de pré-aquecimento e interpasse que sejam ambas mais baixas que a temperatura listada e mais baixas que a Tabela 3.2 devem ser qualificadas por teste.
  • 348.
    AWS D1.1/D1.1M:2010 ANEXOI 328 Observações: 1. CE = C + (Mn + Si)/6 + (Cr + Mo + V)/5 + (Ni + Cu)/15. 2. Ver I5.2(1), (2), ou (3) para características de zona aplicáveis. Figura I.1 - Classificação de Zona de Aços (ver I5.1) Figura I.2—Taxa de Resfriamento Crítica para 350 HV e 400 HV (ver I3.3)
  • 349.
    AWS D1.1/D1.1M:2010 ANEXOI 329 Figura I.3—Gráficos para Determinar Taxas de Resfriamento para Soldas de Filete SAW de Passe Único (ver I6.1.3)
  • 350.
    AWS D1.1/D1.1M:2010 ANEXOI 330 Figura I.3 (Continuação) - Gráficos para Determinar Taxas de Resfriamento para Soldas de Filete SAW de Passe Único (ver I6.1.3)
  • 351.
    AWS D1.1/D1.1M:2010 ANEXOI 331 Figura I.3 (Continuação) - Gráficos para Determinar Taxas de Resfriamento para Soldas de Filete SAW de Passe Único (ver I6.1.3)
  • 352.
    AWS D1.1/D1.1M:2010 332 Figura I.4- Relação Entre Tamanho de Solda de Filete e Entrada de Energia (ver I6.1.5)
  • 353.
    AWS D1.1/D1.1M:2010 ANEXOJ 333 Anexo J (Normativo) Símbolos para Projeto de Solda de Conexão Tubular Esse anexo é parte de Dl.1/D1.1M:2010, Código de Soldagem Estrutural- Aço, da AWS e inclui elementos obrigatórios para uso com esse padrão. Símbolos usados na Cláusula 2, Parte D, são como segue: Símbolo Significado Símbolo Significado α (alfa) parâmetro oval de corda f b tensão de flexão em membro de ramificação a largura de produto de seção oca retangular f b tensão de flexão em membro principal ax razão de a para sin fby tensão nominal, flexão no plano b largura transversal de tubos retangulares fbz tensão nominal, flexão fora do plano bet (be(ov)) largura efetiva de ramificação no membro conectado fn tensão nominal em membro de ramificação beo (be) largura efetiva de ramificação na corda g folga em conexões em K- beoi (bep) largura efetiva do membro para perfuração externa H profundidade de braçadeira (corda de caixa) no plano da armação bgap largura efetiva em folga de conexões em K- γ parâmetro de flexibilidade do membro principal (gama); razão R para tc (seções circulares); razão de D para 2tc (seções de caixa) β (beta) razão de diâmetro de db para D; razão de rb para R (seções circulares); razão de b para D (seções de caixa) γb razão de raio para espessura de tubo em transição γt membro conectado γ(para conexões sobrepostas) βgap largura efetiva adimensional em folga de conexões em K- ID diâmetro interno βeoi razão adimensional de beoi para a largura do membro principal K– configuração de conexão βeop largura efetiva adimensional do membro para perfuração externa Ka fator de comprimento relativo βeff β efetivo para plastificação de face de corda em conexão em K- Kb fator de seção relativa c dimensão de canto λ (lambda) parâmetro de sensibilidade de interação D diâmetro externo OD (tubos circulares) ou largura externa de membro principal (seções de caixa) L tamanho de dimensão de solda de filete como mostrado na Figura 2.14 D razão de dano de fadiga cumulativa, Σ L comprimento de lata de junta db diâmetro do membro de ramificação LF fator de carga (fator de segurança parcial para carga em LRFD) η (eta) razão de ax para D l1 comprimento de solda real onde a ramificação
  • 354.
    AWS D1.1/D1.1M:2010 334 encontra omembro principal εTR (épsilon) faixa de deformação total Símbolo Significado Símbolo Significado F tamanho de extremidade de solda de filete l2 comprimento (um lado) de corda projetado para solda de sobreposição FEXX resistência à tração mínima classificada do depósito de solda M momento aplicado Fy limite de escoamento de metal base Mc momento em corda Fyo limite de escoamento de membro principal Mu momento de ruptura fa tensão axial em membro de ramificação n ciclo de carga aplicada fa tensão axial em membro principal N número de ciclos permitidos em dada faixa de tensão Pc carga axial em corda OD diâmetro externo Pu carga de ruptura P carga axial em membro de ramificação P┴ componente de carga de membro individual perpendicular ao eixo do membro principal tb espessura de parede de membro de ramificaçãomembro de ramificação para dimensionamento de soldas em chanfro CJP membro mais fino para dimensionamento de soldas em filete e soldas em chanfro PJP p comprimento de alcance projetado de membro de sobreposição q quantidade de sobreposição tc espessura de parede da espessura de lata da junta do membro principal ϕ (phi) ângulo incluído na junta tw tamanho de solda (garganta efetiva) π (pi) razão de circunferência para diâmetro de círculo t'w tw como definido em 2.24.1.6 ψ (psi) ângulo diedro local Ver definição Anexo K τ (tau)parâmetro de geometria de espessura relativa a principal-a-ramificação; razão de tb para tc ψ (psi bar) ângulo suplementar à mudança de ângulo diedro local em transição τ1 tsobreposição/tconectado Qb modificador de geometria (teta) ângulo agudo entre dois eixos de membros ângulo entre linhas de centro de membro ângulo de intersecção de cinta vf termo de interação de tensão Qq geometria de membro de ramificação e modificador de padrão de carga Ū razão de utilização de tensão axial e de flexão para tensão permissível, em ponto sob consideração no membro principal R raio externo, membro principal Vp tensão de puncionamentopuncionamento R abertura de raiz (encaixe de junta) Vw tensão permissível para solda entre membros de ramificação r raio de canto de seções ocas retangulares como medido pelo calibrador de raio x variável algébrica r raio efetivo de intersecção Y– configuração de conexão rb raio de ramificação y variável algébrica . rm raio médio para garganta efetiva de soldas Z Dimensão de perda Z SFC fator de concentração de tensão ζ (zeta) razão de folga para D Σl1 (sigma) soma de comprimentos reais de solda T– configuração de conexão TCBR tensão/compressão ou flexão ou ambos, faixa total de tensão nominal t espessura de parede de tubo
  • 355.
    AWS D1.1/D1.1M:2010 335 Anexo K(Informativo) Termos e Definições Esse anexo não é parte de D1.1/D1.1 M:2010, Código de Soldagem Estrutural-Aço, da AWS, mas está incluído apenas para propósito de informação. Os termos e definições nesse glossário são divididos em três categorias: (1) termos gerais de soldagem compilados pelo Comitê de Definições e Símbolos da AWS; (2) termos, definidos pelo Comitê de Soldagem Estrutural da AWS, os quais aplicam-se apenas a UT, designados por (UT) em seguida do termo; e (3) outros termos, precedidos por asteriscos, que são definidos conforme se relacionam a esse código. Para o propósito desse documento, os seguintes termos e definições aplicam-se: A *anexos auxiliares. Membros ou acessórios anexados aos membros principais carregadores de tensão por soldagem. Tais membros podem ou não carregar cargas *ângulo de aresta (estruturas tubulares). O ângulo agudo entre uma aresta de bisel feita em preparação para soldagem e uma tangente à superfície do membro, medida localmente em um plano perpendicular à linha de intersecção. Todos os biséis abertos para o lado de fora da cinta. *ângulo de bisel. O ângulo entre o bisel de um membro de junta e um plano perpendicular à superfície do membro. *ângulo de chanfro (estruturas tubulares). O ângulo entre faces opostas do chanfro a serem preenchidas com metais de solda determinados após a junta ser ajustada. *ângulo de intersecção de cinta, 8 (estruturas tubulares). O ângulo agudo formado entre linhas de centro de cinta. *ângulo diedro local, '¥ (estruturas tubulares). O ângulo, medido em um plano perpendicular à linha da solda, entre tangentes às superfícies externas dos tubos sendo anexados na solda. O ângulo diedro externo, em que uma seção localizada da conexão é observada, de tal forma que as superfícies de intersecção podem ser tratadas como planas. *ângulo diedro. Ver ângulo diedro local. *atenuação (UT) A perda em energia acústica que ocorre entre quaisquer dois pontos de deslocamento. Essa perda pode ser devida a absorção, reflexo, etc. (Nesse código, usando o método de teste de onda pulso-eco de cisalhamento, o fator de atenuação é 2 dB por polegada de distância do caminho de som após a primeira polegada.) abertura de raiz. Uma separação da raiz de junta entre as peças. anel de reforço. Reforço na forma de um anel, geralmente usado na soldagem de um cano. ângulo de bisel. O ângulo entre o bisel de um membro de junta e um plano perpendicular à superfície do membro. ângulo de chanfro. O ângulo incluído total de chanfro entre peças B *barra de prateleira. Placas ou barras de aço, ou elementos similares usados para suportar o transbordamento de metal de solda em excesso
  • 356.
    AWS D1.1/D1.1M:2010 ANEXOK 336 depositado em uma junta de solda em chanfro horizontal. *base de pinos. A ponta de pino na extremidade de soldagem, inclusive fluxo e contêiner, e a 1/8 in [3 mm] do corpo do pino ajacente à ponta. *bolsa de gás Um termo não padronizado para porosidade. C *calafetagem. Deformação plástica de superfícies de solda e metal base por meios mecânicos para selar ou obscurecer descontinuidades *camada. Um estrato de metal de solda ou material de superfície. A camada pode consistir de um ou mais cordões de solda colocados lado a lado. *caminho V- (UT) A distância que um feixe sonoro de onda de cisalhamento percorre da interface de material de teste da unidade de busca à outra face do material de teste e de volta à superfície original. *cano. Seções transversais circulares ocas produzidas ou fabricadas de acordo com uma especificação de produto de cano. Ver tubular. *Código de Obras. O termo Código de Obras, sempre que a expressão ocorre nesse código, refere-se à lei ou especificação de obras ou outros regulamentos de construção em conjunção com o qual esse código é aplicado. Na ausência de qualquer lei ou especificação de obras ou outros regulamentos de construção localmente aplicáveis, é recomendado que seja requerido que a construção esteja em conformidade com a Especificação para Projeto, fabricação e Ereção de Aço Estrutural para Obras do American Institute of Steel Construction (AISC). *comprimento efetivo de solda. O comprimento ao longo do qual a seção transversal corretamente proporcionada da solda existe. Em uma solda curva, deve ser medido ao longo do eixo da solda. *conexão tubular. Uma conexão na porção de uma estrutura que contém dois ou mais membros de intersecção, dos quais pelo menos um é um membro tubular. *CVN. Resistência ao impacto no entalhe em V de Charpy. certificação de soldador. Certificação escrita de que um soldador produziu soldas atendendo um padrão prescrito de desempenho de soldador. CJP (penetração completa de junta). Uma condição de raiz de junta em uma solda em chanfro na qual metal de solda estende-se através da espessura de junta. cordão de solda. Um tipo de cordão de solda feito com oscilação transversal. cordão de solda. Uma solda resultante de um passe. Ver passe estreito e cordão de solda. cratera. Uma depressão na face de solda na terminação de um cordão de solda. D *decibel (dB) (UT). A expressão logarítmica de uma razão de duas amplitudes ou intensidade de energia acústica. *deformação hot-spot (estruturas tubulares). A faixa total cíclica de deformação que seria medida no ponto de concentração mais alta de tensão em uma conexão soldada. Ao medir deformação hot-spot, o extensiômetro deve ser suficientemente pequeno para evitar fazer a média de deformações altas e baixas nas regiões de gradientes *descontinuidade do tipo fusão. Significa inclusão de escória, fusão incompleta, penetração de junta incompleta e descontinuidades similares associadas com fusão. *descontinuidade inaceitável. Ver defeito. *descontinuidade transversal. Uma descontinuidade de solda cuja maior dimensão é em direção perpendicular ao eixo da solda "X", ver Anexo M, Formulário M-11. *desenhos. Refere-se a planos de projeto e desenhos de detalhe, e planos de ereção. *distância de caminho de som (UT). A distância entre a interface de material de teste da unidade de busca e o refletor como medido ao longo da linha de centro do feixe sonoro. *distância de feixe sonoro (UT). Ver distância de caminho de som. *documentos de contrato. Quaisquer códigos, desenhos ou requisitos adicionais que são contratualmente especificados pelo Proprietário. defeito. Uma descontinuidade (ou descontinuidades) que por natureza ou efeito acumulado (por exemplo, comprimento total de trinca) tornam uma peça ou produto incapazes de atender os padrões e especificações de aceitação mínimos aplicáveis. Esse termo designa rejeição. descontinuidade. Uma interrupção da estrutura típica de um material, tal como uma falta de homogeneidade em suas características mecânicas, metalúrgicas ou físicas. Uma descontinuidade não necessariamente é um defeito. downhand. um termo não padronizado para posição plana de soldagem. E *eletrodo paralelo Dois eletrodos conectados eletricamente em paralelo e exclusivamente à mesma fonte de energia. Ambos os eletrodos são normalmente alimentados por meio de um único alimentador de eletrodo. Corrente de soldagem, quando especificada, é a total para os dois.
  • 357.
    AWS D1.1/D1.1M:2010 ANEXOK 337 *eletrodo paralelo Ver penetração de junta parcial SAW. Ver passe PJP. Ver passe de solda. *eletrodo único. Um eletrodo conectado exclusivamente a uma fonte de energia que pode consistir de uma ou mais unidades de foça elétrica. *eletrodos múltiplos. A combinação de dois ou mais sistemas de eletrodo paralelo ou único. Cada um dos sistemas componentes tem sua própria fonte de energia e seu próprio alimentador de eletrodo. *Empreiteiro. Qualquer empresa, ou indivíduo representando uma empresa, responsável pela fabricação, ereção ou soldagem em conformidade com as provisões desse código. *Engenheiro. Um indivíduo devidamente designado que age pelo, e em nome do, Proprietário em todos os assuntos no âmbito do código. *espécime de teste de metal depositado. Um espécime de teste com a seção reduzida composta inteiramente de metal de solda. EGW (soldagem por eletrogás). Um processo de soldagem a arco que usa um arco entre um eletrodo de metal de adição contínuo e a poça de fusão, empregando progressão de soldagem aproximadamente vertical com reforço para confinar o metal de solda derretido. O processo é usado com ou sem gás de proteção fornecido externamente e sem a aplicação de pressão. eixo de solda. Uma linha através do comprimento de uma solda, perpendicular a e no centro geométrico de sua seção transversal. ESW (soldagem por eletroescória). Um processo de soldagem que produz coalescência de metais com escória derretida que derrete o metal de adição e a superfície da peça. A poça de fusão é protegida por essa escória, que se move através de toda a seção transversal da junta conforme a soldagem progride. O processo é iniciado por um arco que aquece a escória. O arco é então extinguido pela escória condutiva, que é mantida derretida por sua resistência à corrente elétrica passando entre os eletrodos e as peças. extremidade de solda. A junção da face de solda e o metal base. F face de chanfro. A superfície de um membro de junta incluído no chanfro. face de raiz. A porção de face em chanfro na raiz de junta. face de solda. A superfície exposta de uma solda no lado a partir do qual a soldagem foi feita. *fadiga. Fadiga, como usado aqui, é definida como o dano que pode resultar em fratura após um número suficiente de flutuações de tensão. Faixa de tensão é definida como a magnitude de pico dessas flutuações. No caso de reversão de tensão, a faixa de tensão será computada como a soma numérica (diferença algébrica) de tensões de compressão e de tração máxima repetida, ou a soma de tensões de cisalhamento de direção oposta em um dado ponto, resultando em mudança de condições de carga. *Falta de nitizez geométrica. A granulação ou falta de definição em uma imagem radiográfica resultante do tamanho da fonte, distância objeto-a-filme e distância fonte-a-objeto. A falta de nitidez geométrica pode ser expressa matematicamente como: - Ug = F (Li- Lo)Lo Em que Ug é a falta de nitidez geométrica, F é o tamanho do ponto focal ou radiação gama, Li é a distância fonte-a-filme e L) é a distância fonte-a- objeto. *FCAW-G (soldagem a arco com arame tubular - autoprotegida). Um processo de soldagem a arco com arame tubular em que a proteção é exclusivamente fornecida por um fluxo contido no eletrodo tubular. *FCAW-G (soldagem a arco com arame tubular - com gás de proteção). Uma variação de processo de soldagem a arco com arame tubular na qual proteção adicional é obtida de um gás ou mistura de gás fornecido externamente. *fluxo de liga. Um fluxo do qual o conteúdo de liga do metal de solda é largamente dependente. FCAW (soldagem a arco com arame tubular) Um processo de soldagem a arco que usa um arco entre um eletrodo contínuo de metal de adição contínuo e a poça de fusão. O processo é usado com gás de proteção de um fluxo contido no eletrodo tubular, com ou sem proteção adicional de um gás fornecido externamente, e sem a aplicação de pressão. folga de raiz. Um termo não padronizado para abertura de raiz, junta de raiz. Ver raiz de junta. fusão completa. Fusão sobre todas as faces de fusão e entre todos os cordões de solda adjacentes. fusão. O derretimento conjunto de metal de adição e metal base (substrato), ou apenas de metal base, para produzir uma solda. G garganta de uma solda de filete. garganta de uma solda em chanfro. um termo não padronizado para tamanho de solda em chanfro. garganta real A menor distância entre a raiz de solda e a face de uma solda de filete. garganta teórica. A distância do começo da raiz de junta perpendicular à hipotenusa do maior triângulo retângulo que pode ser inscrito em uma seção transversal de uma solda de filete. A dimensão é baseada na assunção de que a abertura de raiz é igual a zero. gás de proteção. Gás protetor usado para prevenir ou reduzir contaminação atmosférica.
  • 358.
    AWS D1.1/D1.1M:2010 ANEXOK 338 GMAW (soldagem Mig/Mag) Um processo de soldagem a arco que usa um arco entre um eletrodo de metal de adição contínuo e poça de fusão. O processo é usado com proteção de um gás de proteção fornecido externamente e sem a aplicação de pressão. GMAW-S (soldagem Mig/Mag-arco de curto circuito) Uma variação de processo de soldagem Mig/Mag na qual o eletrodo consumível é depositado durante curto-circuitos repetidos. goivagem a arco Goivagem térmica que use uma variação de processo de corte a arco para formar um bisel ou chanfro. goivagem com oxigênio. Goivagem térmica que usa uma variação de processo de corte para formar um bisel ou chanfro. goivagem por trás. A remoção de metal de solda e metal base do lado de raiz da solda de uma junta soldada para facilitar fusão completa e CJP na soldagem subsequente a partir daquele lado. goivagem térmica. Uma variação de processo de corte térmico que remove metal ao derreter ou queimar toda a porção removida, para formar um bisel ou chanfro. goivagem. Ver goivagem térmica. GTAW. Soldagem Tig. guia consumível ESW. Uma variação de processo de soldagem por eletroescória na qual metal de adição é fornecido por um eletrodo e seu membro guia. guia consumível ESW. Ver ESW. H HAZ (zona afetada por calor) A porção do metal base cujas propriedades mecânicas ou microestrutura tenham sido alterados pelo calor da soldagem, brasagem ou corte térmico. I *indicação (UT) O sinal exibido no osciloscópio significando a presença de um refletor de onda de som sendo testado. *Inspetor de Verificação. A pessoa devidamente designada que age pelo, e em nome do, Proprietário em todas as inspeções e assuntos de qualidade designados pelo Engenheiro. *Inspetor do Empreiteiro A pessoa devidamente designada que age pelo, e em nome do, Empreiteiro em todas as inspeções e assuntos de qualidade no âmbito do código e dos documentos de contrato. *IQI (indicador de qualidade de imagem). Um dispositivo cuja imagem em uma radiografia é usada para determinar nível de qualidade de RT. Não é pretendido para uso no julgamento do tamanho nem para estabelecer limites de aceitação de descontinuidades. indicador de qualidade de imagem. Ver IQI. J junta. A junção de membros ou as arestas de membros que serão anexados ou foram anexados. junta de ângulo. Uma junta entre dois membros localizada aproximadamente em um ângulo reto em relação à outra, na forma de um L. junta de topo. Uma junta entre dois membros alinhados aproximadamente no mesmo plano. junta em T-. Uma junta entre dois membros localizada aproximadamente em um ângulo reto em relação à outra, na forma de uma extremidade de solda em T. Ver extremidade de solda. junta sobreposta. Uma junta entre dois membros sobrepostos em planos paralelos. junta soldada simples. Uma junta que é soldada a partir de apenas um lado. *junta tubular. Uma junta na interface criada por um membro tubular em intersecção com outro membro (que pode ou não ser tubular). L ligação soldada. Uma montagem cujas peças componentes são anexadas por soldagem *linha de referência horizontal (UT). Uma linha horizontal perto do centro do âmbito de instrumento UT para a qual todos os ecos são ajustados para leitura dB. M máquina de soldagem. Equipamento usado para realizar a operação de soldagem. Por exemplo, máquina de soldagem de tampão, máquina de soldagem a arco e máquina de soldagem de costura. martelamento. O trabalho mecânico em metais que usa golpes de impacto. metal base. O metal ou liga que é soldado, brasado ou cortado. metal de adição. O metal ou liga a ser acrescentado ao fazer uma junta soldada ou brasada. mordedura. Um chanfro derretido em um metal base adjacente à extremidade de solda ou raiz de solda e deixada sem preenchimento por metal de solda. MT. Teste de partícula magnética. N NDT. Ensaio não-destrutivo *nível de defeito (UT). Ver nível de indicação.
  • 359.
    AWS D1.1/D1.1M:2010 ANEXOK 339 *nível de escaneamento (UT). A configuração dB usada durante escaneamento, como descrito nas Tabelas 6.2 e 6.3. *nível de indicação (UT). A leitura de controle de ganho calibrado ou atenuação obtida de uma linha de referência de indicação de altura a partir de uma descontinuidade. *nível de referência (UT). A leitura de decibel obtida de uma linha de referência de indicação de altura a partir de um refletor de referência. *nível de rejeição do comprimento de amplitude (UT) O comprimento máximo de descontinuidade permitido por várias taxas de indicação associadas com tamanho de solda, como indicado nas Tabelas 6.2 e 6.3. *nó (UT) Ver perna. O *OEM (Fabricante de Equipamento Original). Um único Empreiteiro que assume algumas ou todas as responsabilidades atribuídas por esse código ao Engenheiro. operador de soldagem. Aquele que opera equipamento robótico, mecanizado, automático ou de controle adaptativo de soldagem. oxicorte (OC) Um grupo de processos de corte térmico que separa ou remove metal por meio de reação química entre oxigênio e o metal base a temperatura elevada. A temperatura necessária é mantida por aquecimento a partir de um arco, uma chama de gás ou outra fonte. P *passe de acabamento. Um ou mais passes de solda que formam a face da solda (superfície exposta de solda concluída). Passes de acabamento adjacentes podem cobrir parcialmente, mas não completamente, um passe de acabamento. passe de reforço. Um passe de solda feito para uma solda de reforço. passe de solda. Uma única progressão de soldagem ao longo de uma junta. O resultado de um passe é um cordão ou camada de solda. passe estreito. Um tipo de cordão de solda feito sem movimento de entrelaçamento apreciável. penetração completa. Um termo não padronizado para CJP. penetração de junta. A distância do metal de solda estende-se a partir da face de solda em uma junta, exclusiva de reforço de solda. *perna (UT) O caminho que a onda de cisalhamento percorre em uma linha direta antes de ser refletido pela superfície do material sendo testado. Ver esboço para identificação de perna. Observação: Perna I mais perna II é igual a um caminho em V. perna de solda de filete. A distância da raiz da junta à extremidade da solda de filete. perna de uma solda de filete. Ver perna de solda de filete. PJP. Penetração de junta que é intencionalmente menos que completa. *porosidade de encanamento (ESW e EGW). Porosidade alongada cuja maior dimensão jaz em uma direção aproximadamente paralela ao eixo de solda. *porosidade de encanamento (geral). Porosidade alongada cuja maior dimensão jaz em uma direção aproximadamente normal à superfície de solda. Frequentemente designada como orifícios de pino quando a porosidade estende-se à superfície de solda. *posição vertical (soldagem em cano). Aposição de uma junta de cano na qual soldagem é realizada na posição horizontal e o cano não é girado durante a soldagem (ver Figuras 4.1, 4.2 e 4.4) porosidade. Descontinuidades do tipo cavidade formadas por aprisionamento de gás durante a solidificação ou em um depósito de pulverização térmica. posição de soldagem horizontal, solda de filete. A posição de soldagem em que a solda está no lado de cima de uma superfície aproximadamente horizontal e contra uma superfície aproximadamente vertical (ver Figuras 4.1, 4.2, 4.3 e 4.5). posição de soldagem suspensa. A posição de soldagem na qual a soldagem é realizada a partir do lado de baixo da junta (ver Figuras 4.1, 4.2, 4.3 e 4.5). posição fixada horizontalmente (soldagem de cano) A posição de uma junta de cano na qual o eixo do cano é aproximadamente horizontal e o cano não é girado durante a soldagem (ver Figuras 4.1, 4.2 e 4.4). posição girada horizontalmente (soldagem de cano) A posição de uma junta de cano na qual o eixo do cano é aproximadamente horizontal, e a soldagem é realizada na posição plana pela rotação do cano (ver Figuras 4.1, 4.2 e 4.4). posição plana de soldagem. A posição de soldagem usada para soldar a partir da parte de cima da junta em que o eixo de solda é aproximadamente horizontal, e a face de solda jaz em um plano aproximadamente horizontal.
  • 360.
    AWS D1.1/D1.1M:2010 ANEXOK 340 posição vertical de soldagem. A posição de soldagem na qual o eixo de solda, no ponto de soldagem, é aproximadamente vertical e a face de solda jaz em um plano aproximadamente vertical (ver Figuras 4.1, 4.2, 4.3 e 4.5). pré-aquecimento. A aplicação de calor ao metal base imediatamente antes de soldagem, brasagem, corte ou pulverização térmicos. processo mecanizado (XXXX-ME). Uma operação com equipamento que requer ajuste manual de um operador em resposta a observação visual, com o maçarico, pistola, montagem de guia de arame ou porta eletrodo seguro por um dispositivo mecânico. Ver soldagem mecanizada. profundidade de fusão. A distância a que a fusão se estende no metal base ou cordão anterior a partir da superfície derretida durante a soldagem. *procedimento de soldagem de junta. Os materiais e métodos e práticas detalhados empregados na soldagem de uma junta particular. *Proprietário. O indivíduo ou empresa que exerce propriedade legal do produto ou montagem estrutural produzido para esse código. *PT. Teste de líquido penetrante. *PWHT. Tratamento térmico pós-solda. Q qualificação de desempenho de soldador. A demonstração da habilidade de um soldador em produzir soldas que atendas aos padrões prescritos. qualificação WPS. A demostração de que soldas feitas por um procedimento específico podem atender padrões prescritos. qualificação. Ver qualificação de desempenho de soldador e qualificação WPS. R raiz de junta. Aquela porção de uma junta a ser soldada em que os membros se aproximam mais um do outro. Em seção transversal, a raiz de junta pode ser um ponto, uma linha ou uma área. raiz de solda. Os pontos, como mostrado em seção transversal, nos quais a superfície de raiz faz intersecção com as superfícies de metal base. raiz de solda. Ver raiz de solda. *rebarba. O material que é expelido ou espremido da junta de solda e que se forma ao redor da solda. *refletor de referência (UT). O refletor de geometria conhecida contido no bloco de referência IIW ou outros blocos aprovados. reforço. Um material ou dispositivo colocado contra o lado de trás da junta, ou em ambos os lados de uma solda em ESW e EGW, para suportar e reter metal de solda derretido. O material pode ser parcialmente fundido ou não durante a soldagem e pode ser metal ou não metal. reforço de solda. Metal de solda que excede a quantidade requerida para preencher uma junta. reforço de solda. Ver reforço de solda. *resistência à tração nominal do metal de solda. A resistência à tração do metal de solda indicada pelo número de classificação do metal de adição (por exemplo, resistência à tração nominal de E60XX é 60 ksi [420 MPa]). *resolução (UT) A habilidade de equipamento UT de dar indicações separadas de refletores próximos. *RT. Teste radiográfico. respingo. As partículas de metal expelidas durante soldagem de fusão que não forma uma parte da solda. S SAW (soldagem a arco submerso). Um processo de soldagem a arco que usa um arco, ou arcos, entre um eletrodo, ou eletrodos, de metal base e a poça de fusão. O arco e metal derretido são protegidos por uma cobertura de fluxo granular nas peças. O processo é usado sem pressão e com metal de adição a partir do eletrodo e às vezes a partir de uma fonte suplementar (vara, fluxo ou grânulos de metal de soldagem). sequência aleatória. Uma sequência longitudinal em que os incrementos de cordão de solda são feitos aleatoriamente. sequência de soldagem. A ordem na qual fazer as soldas em uma ligação soldada. SMAW (Soldagem Tig com proteção). Um processo de soldagem a arco com um arco entre um eletrodo coberto e uma poça de fusão. O processo é usado com proteção da decomposição da cobertura de eletrodo, sem a aplicação de pressão e com metal de adição a partir do eletrodo. solda. uma coalescência localizada de metais ou não metais produzida pelo aquecimento dos materiais à temperatura de soldagem, com ou sem a aplicação de pressão, ou pela aplicação de pressão apenas e com ou sem o uso de material de enchimento. *solda em chanfro CJP (estruturas estaticamente e ciclicamente carregadas). Uma solda em chanfro que foi feita a partir de ambos os lados ou a partir de um lado em um reforço, tendo CJP e fusão de metal base e de solda por toda a profundidade da junta. *solda em chanfro CJP (estruturas tubulares). Uma solda em chanfro que tenha CJP e fusão de solda e metal base por toda a profundidade da junta ou como detalhado nas Figuras 2.21, 4.26, 3.6 a 3.10. Uma solda em chanfro CJP tubular a partir de apenas um lado, sem reforço, é permitida quando o tamanho ou
  • 361.
    AWS D1.1/D1.1M:2010 ANEXOK 341 configuração, ou ambos, impedem acesso ao lado da raiz da solda. solda contínua. Uma solda que se estende continuamente de uma extremidade a outra de uma junta. Quando a junta é essencialmente circular, ela estende-se completamente ao redor da junta. solda de auxílio à construção. Uma solda feita para anexar uma peça ou peças à ligação soldada para uso temporário no manuseio, remessa ou trabalho na estrutura. solda de reforço. Reforço na forma de uma solda. solda de tampão (plug). Uma solda feita em um orifício circular em um membro de uma junta fundindo aquele membro a outro membro. Um orifício soldado por filete não deve ser interpretado em conformidade com essa definição. solda de tampão (slot). Uma solda feita em um orifício alongado em um membro de uma junta fundindo aquele membro a outro membro. O orifício pode estar aberto em uma extremidade. Um tampão soldado por filete não deve ser interpretado em conformidade com essa definição. solda de topo. Um termo não padronizado para uma solda em uma junta de topo. Ver junta de topo. solda defeituosa. Uma solda contendo um ou mais defeitos. solda descontínua. Uma solda na qual a continuidade é quebrada por espaços não soldados recorrentes. solda em chanfro bisel curvado. Uma solda no chanfro formado entre um membro de junta com uma superfície curva e outra com uma superfície planar. solda em chanfro. Uma solda feita no chanfro entre peças. solda posicionada. Uma solda feita em uma junta que tenha sido colocada para facilitar a feitura da solda. solda provisória. Uma solda feita para manter peças de uma ligação soldada em alinhamento apropriado até que as soldas finais sejam feitas. solda traseira. Uma solda feita na parte de trás de uma solda em chanfro única. soldabilidade. A capacidade de um material de ser soldado sob as condições de fabricação impostas a uma estrutura específica, projetada adequadamente, e de desempenhar satisfatoriamente o serviço pretendido. soldador ponteador. Um montador mecânico, ou alguém sob a direção de um montador mecânico, que faz a solda provisória de partes de uma ligação soldada para mantê-las em alinhamento apropriado até que as soldas finais sejam feitas. soldador. Aquele que realiza uma operação de soldagem manual ou semi-automática. *soldagem back-up (estruturas tubulares). O passe de fechamento inicial em uma solda em chanfro CJP, feito a partir de apenas um lado, serve como um reforço para soldagem subsequente, mas não é considerado como uma parte da solda teórica (Figuras 3.8 a 3.10, Detalhes C e D). *soldagem de acabamento A continuação de uma solda de filete ao redor do canto de um membro como uma extensão da solda principal. *soldagem de pino (SW) Um processo de soldagem a arco que produz coalescência de metais por aquecimento com um arco entre um pino de metal, ou peça similar, e a outra peça. Quando as superfícies a serem anexadas são propriamente aquecidas, elas são unidas sob pressão. Proteção parcial pode ser obtida pelo uso de um grampo de fixação de cerâmica ao redor do pino. Fluxo ou gás de proteção pode ou não pode ser usado. soldagem a arco com arame tubular. Ver FCAW. soldagem a arco submerso. Ver SAW. soldagem automática. Soldagem com equipamento que requer observação apenas ocasional (ou nenhuma observação) da soldagem, e nenhum ajuste manual dos controles de equipamento. Variações desse termo são brasagem automática, corte térmico automático e pulverização térmica automática. soldagem CO2. Um termo não padronizado para GMAW com gás de proteção de dióxido de carbono. soldagem de sobreposição, de fusão. A protrusão de metal de solda além da extremidade de solda ou raiz de solda. soldagem em bruto. A condição de metal de solda, juntas soldadas e ligações soldadas após a soldagem, mas antes de quaisquer tratamentos térmicos, mecânicos ou químicos subsequentes. soldagem manual. Soldagem com maçarico, pistola ou porta eletrodo seguro e manipulado pelas mãos. Equipamento acessório, como dispositivos parcialmente de movimento e controlados manualmente, alimentadores de material de enchimento, pode ser usado. Ver soldagem automática, soldagem mecanizada e soldagem semiautomática. soldagem mecanizada (W-ME). Ver processo mecanizado. soldagem semi-automática. Soldagem manual com equipamento que controla automaticamente uma ou mais das condições de soldagem. Soldagem Tig com proteção. Ver SMAW. Soldagem Tig. Ver GMAW. soldagem. um processo de anexação que produz a coalescência de materiais pelo seu aquecimento à temperatura de soldagem, com ou sem a aplicação de pressão, ou pela aplicação de pressão apenas e com ou sem o uso de metal de adição. Ver também o Master Chart of Welding and Allied Processes na última edição de A3.0 da AWS. superfície de contato A superfície de contato de um membro que está em contato com ou em proximidade de outro membro ao qual está sendo anexado.
  • 362.
    AWS D1.1/D1.1M:2010 ANEXOK 342 T tamanho de solda. tamanho de solda de filete. Para soldas de filete de perna igual, os comprimentos de perna do maior triângulo retângulo isósceles que pode ser inscrito em uma seção transversal de solda de filete. Para soldas de filete de perna desigual, os comprimentos de perna do maior triângulo retângulo que pode ser inscrito em uma seção transversal de solda de filete. OBSERVAÇÃO: Quando um membro faz um ângulo com o outro membro maior que 105', o comprimento (tamanho) de perna é menos significativo que a garganta efetiva, que é o fator de controle para a resistência da solda. tamanho de solda em chanfro. A penetração de junta de uma solda em chanfro. guia de solda. Material adicional que se estende além de ambas as extremidades da junta, no qual a solda é iniciada ou concluída. *tandem Refere-se arranjo geométrico de eletrodos nos quais a linha através dos arcos é paralela à direção de soldagem. *taxa de decibel (UT). Ver taxa de indicação de termo designado. *taxa de defeito (UT). Ver taxa de indicação. *taxa de indicação (UT). A leitura de decibel em relação ao nível de referência zero após ter sido corrigido para atenuação de som. temperatura de interpasse. Em uma solda de passes múltiplos, a temperatura da área de solda entre passes de solda. temperatura de pré-aquecimento, soldagem. A temperatura do metal base no volume que circunda o ponto de soldagem imediatamente antes de a soldagem ser iniciada. Em uma solda de passe múltiplo, é também a temperatura imediatamente antes de o segundo passe e subsequentes serem iniciados. *tratamento térmico pós-solda. Qualquer tratamento térmico após soldagem. *tubular. Um termo genérico que se refere a seções que incluem produtos de cano (ver cano) e a família de produtos de seção oca quadrada, retangular e circular produzida ou fabricada de acordo com uma especificação de produto tubular. Também conhecido como seção estrutural oca (HSS) tubulação de caixa. Produto tubular de seção transversal quadrada ou retangular. Ver tubular. U *UT. Teste de ultrassonografia. W *WPS (especificação de procedimento de soldagem). Os métodos e práticas detalhados que incluem todos os procedimentos de soldagem de junta envolvidos na produção de uma ligação soldada. Ver procedimento de soldagem de junta. Z zona afetada por calor. Ver HAZ. zona de fusão. A área de metal base derretida como determinado na seção transversal de uma solda
  • 363.
    AWS D1.1/D1.1M:2010 343 . Anexo L(Informativo) Guia para Escritores de Especificação Esse anexo não é parte de D1.1/D1.1 M:2010, Código de Soldagem Estrutural-Aço, da AWS, mas está incluído apenas para propósito de informação. Uma declaração em um documento de contrato de que toda soldagem seja feita em conformidade com D1.1, Código de Soldagem Estrutural - Aço, da AWS, cobre apenas os requisitos obrigatórios de soldagem. Outras provisões no código são opcionais. Aplicam´se apenas quando são especificadas. A seguir estão algumas das provisões opcionais mais comumente usadas e exemplos de como elas podem ser especificadas. Provisão Opcional Especificação Típica Inspeção de Fabricação/Ereção [Quando não for responsabilidade do Empreiteiro (6.1.1)] Inspeção de Fabricação/Ereção será realizada pelo Proprietário. ou Inspeção de Fabricação/Ereção será realizada pela agência de teste escolhida pelo Proprietário. OBSERVAÇÃO: Quando inspeção de fabricação/ereção é realizada pelo Proprietário ou agência de teste do Proprietário, detalhes completos sobre a extensão de tais testes devem ser dados. Inspeção de Verificação (6.1.2) Inspeção de Verificação (6.1.2) deve ser realizada pelo Empreiteiro. ou Inspeção de Verificação (6.1.2) deve ser realizada pelo Proprietário. ou Inspeção de Verificação será realizada por uma agência de teste escolhida pelo Proprietário. ou Inspeção de Verificação deve ser abandonada. Ensaio não-destrutivo. NDT Geral: Para cada tipo de junta e tipo indicado de NDT a ser usado (que não visual [6.14] e tipo de tensão [tensão, compressão e cisalhamento]), a extensão da
  • 364.
    ANEXO M AWSD1.1/D1.1M:2010 344 inspeção, quaisquer técnicas especiais a serem usadas e critérios de aceitação. Exemplos específicos (a serem interpretados como exemplos e não recomendações) estão a seguir: O Engenheiro deve determinar os requisitos específicos para cada condição. Provisão Opcional Especificação Típica de Fabricação de Estruturas Estaticamente Carregadas: Momento de Tensão de Conexão de Soldas em Chanfro em Juntas de Topo—inspeção UT de 25% de cada das quatro primeiras juntas, caindo para 10% de cada das juntas remanescentes. Critérios de aceitação— Tabela 6.2. Soldas de filete—MT—Inspeção de 10% do comprimento de cada solda. Critérios de aceitação— Tabela 6.1. Fabricação de Estruturas Estaticamente Carregadas: Emendas de Topo de Tensão——100% UT ou 100% RT—Critérios de aceitação—UT: 6.13.2 RT. 6.12.2 Soldas em Ângulo de Penetração Completa em Membros Carregados Axialmente: Tensões— 100% UT, Padrões de Escaneamento D ou E— Critérios de aceitação—Tabela 6.3. Tensões de Compressão—25%, UT, Movimentos de Escaneamento A, B, ou C. Critérios de aceitação—Tabela 6.1. Soldas de filete—MT—Inspeção de 10% do comprimento de cada solda.—Critérios de aceitação—6.12.2. ou (6.15.3) Rejeição de qualquer parte de uma solda inspecionada em uma base de menos de100% deve requerer inspeção de 100% daquela solda. ou (6.15.3) Rejeição de qualquer parte de uma solda inspecionada em uma base de comprimento parcial deve requerer inspeção do comprimento declarado em cada lado da descontinuidade.
  • 365.
    AWS D1.1/D1.1M:2010 345 Anexo M(Informativo) Formulários de Inspeção e Qualificação de Equipamento UT Esse anexo não é parte de D1.1/D1.1 M:2010, Código de Soldagem Estrutural-Aço, da AWS, mas está incluído apenas para propósito de informação. Esse anexo contém exemplos para uso de três formulários, M-8, M-9 e M-10, para registrar dados de teste de UT. Cada exemplo de formulários M-8, M-9 e M-10 mostra como os formulários podem ser usados na inspeção UT de soldas. O Formulário M-11 é para relatar resultados de inspeção UT de soldas.
  • 366.
    ANEXO M AWSD1.1/D1.1M:2010 346 Relatório de Calibragem de Unidade de Ultrassonografia—AWS Modelo de Unidade de Ultrassonografia _______________________ Nº de Série _________________________________ Unidade de Busca—Tamanho ________ Tipo Frequência ___ MHz Calibragem—Data _________________ Intervalo ______________________ Método Nº de Série do Bloco.________________ Dados ________________ Como Encontrados ____________ Como Ajustados INSTRUÇÕES SUPLEMENTARES • Comece com o mais baixo nível dB que pode obter uma indicação de altura de visor de 40 por cento diretamente sobre os dois na seção do bloco DS. Acrescente 6 dB e registre essa leitura dB "a" e altura de visor "b" como o ponto de início do gráfico de tabulação. • Depois de registrar esses valores em Fileiras "a" e "b", deslize o transdutor para obter uma nova altura de visor de 40 por cento. Sem mover o transdutor acrescente 6 dB e registre a nova leitura dB e a nova altura de visor na fileira apropriada. Repita essa etapa quantas vezes a unidade permitir. • Ache a média % de valores de tela da Fileira “b” descartando as 3 primeiras e as 3 últimas tabulações. Use isso como % 2 in calculando a leitura correta. • A seguinte equação é usada para calcular a Fileira “c”: %1 é Fileira "b" %2 é a média da Fileira "b" descartando a primeira e as três últimas tabulações. ( ) dB1 é Fileira “a” dB2 é Fileira “c” • O Erro dB “d” é estabelecido ao subtrair a Fileira “c” da Fileira “a”: (a – c = d). • O Erro Coletivo dB “e” é estabelecido ao iniciar com o Erro dB “d” mais perto de 0,0, acrescentar coletivamente os valores de Erro dB “d” horizontalmente, colocando os subtotais na Fileira “e.” • Movendo horizontalmente, à direita e à esquerda da linha Média de %, ache o intervalo no qual o maior e o menor números de Erro Coletivo dB permaneça em ou abaixo de 2 dB. Conte o número de espaços horizontais de movimento, subtraia um e multiplique o restante por seis. Esse valor dB é a faixa aceitável da unidade. • Para estabelecer a faixa aceitável graficamente, o Formulário M-8 deveria ser usado em conjunto com o Formulário M-9 como segue: (1) Aplicar os valores de Erro coletivo dB "e" verticalmente na compensação horizontal coincidindo com os valores de leitura dB "a". (2) Estabelecer uma linha de curva passando através dessa série de pontos. (3) Aplicar uma janela horizontal de 2 dB de altura sobre essa curva posicionada verticalmente de forma que a seção mais longa esteja completamente incluída na altura de Erro 2 dB. (4) Esse comprimento de janela representa a faixa de dB aceitável da unidade. Fileira Número 1 2 3 4 5 6 7 8 9 10 11 12 13 a Leitura dB b Altura de Visor c Leitura Corrigida d Erro dB e Erro Coletivo dB Precisão Requerida: Faixa mínima permissível é 60 dB %2 (Média)________ % Equipamento é: Aceitável para Uso ______ Não Aceitável para Uso _______ Data de Expiração da Recal bragem_ Faixa total qualificada ________dB a __________ dB = ___________ dB Erro total _________ dB (Do Gráfico acima) Faixa total qualificada ________ dB a __________ dB = ___________ dB Erro total ___________ dB (Do Formulário M-9) Calibrado por ____________________________________ Nível ______________ Local _______________________ Formulário M-8
  • 367.
    ANEXO M AWSD1.1/D1.1M:2010 347 Relatório de Calibragem da Unidade—AWS Modelo de Unidade de Ultrassonografia USN-50 Nº de Série 47859-5014 Unidade de Busca—Tamanho 1” REDONDO Tipo SAB Frequência 2,2 MHz Calibragem—Data 17 de Junho de 1996 Intervalo 2 Meses Método AWS D1.1 Nº de Série do Bloco 1234-5678 Dados XX Como Encontrados ___Como Ajustados INSTRUÇÕES SUPLEMENTARES • Comece com o mais baixo nível dB que pode obter uma indicação de altura de visor de 40 por cento diretamente sobre os dois na seção do bloco DS. Acrescente 6 dB e registre essa leitura dB "a" e altura de visor "b" como o ponto de início do gráfico de tabulação. • Depois de registrar esses valores em Fileiras "a" e "b", deslize o transdutor para obter uma nova altura de visor de 40 por cento. Sem mover o transdutor acrescente 6 dB e registre a nova leitura dB e a nova altura de visor na fileira apropriada. Repita essa etapa quantas vezes a unidade permitir. • Ache a média % de valores de tela da Fileira “b” descartando as 3 primeiras e as 3 últimas tabulações. Use isso como % 2 in calculando a leitura correta. • A seguinte equação é usada para calcular a Fileira “c”: %1 é Fileira "b" %2 é a média da Fileira "b" descartando a primeira e as três últimas tabulações. ( ) dB1 é Fileira “a” dB2 é Fileira “c” • O Erro dB “d” é estabelecido ao subtrair a Fileira “c” da Fileira “a”: (a – c = d). • O Erro Coletivo dB “e” é estabelecido ao iniciar com o Erro dB “d” mais perto de 0,0, acrescentar coletivamente os valores de Erro dB “d” horizontalmente, colocando os subtotais na Fileira “e.” • Movendo horizontalmente, à direita e à esquerda da linha Média de %, ache o intervalo no qual o maior e o menor números de Erro Coletivo dB permaneça em ou abaixo de 2 dB. Conte o número de espaços horizontais de movimento, subtraia um e multiplique o restante por seis. Esse valor dB é a faixa aceitável da unidade. • Para estabelecer a faixa aceitável graficamente, o Formulário M-8 deveria ser usado em conjunto com o Formulário M-9 como segue: (1) Aplicar os valores de Erro coletivo dB "e" verticalmente na compensação horizontal coincidindo com os valores de leitura dB "a". (2) Estabelecer uma linha de curva passando através dessa série de pontos. (3) Aplicar uma janela horizontal de 2 dB de altura sobre essa curva posicionada verticalmente de forma que a seção mais longa esteja completamente incluída na altura de Erro 2 dB. (4) Esse comprimento de janela representa a faixa de dB aceitável da unidade. Fileira Número 1 2 3 4 5 6 7 8 9 10 11 12 13 a Leitura dB 6 12 18 24 30 36 42 48 54 60 66 72 78 b Altura de Visor 69 75 75 77 77 77 77 78 77 78 79 80 81 c Leitura Corrigida 7,1 12,3 18,3 24,1 30,1 36,1 42,1 48,0 54,1 60,0 65,9 71,8 77,7 d Erro dB -1,1 -0,3 -0,3 -0,1 -0,1 -0,1 -0,1 0,0 -0,1 0,0 +0,1 +0,2 +0,3 e Erro Coletivo dB -2,2 -1,1 -0,8 -0,5 -0,4 -0,3 -0,2 -0,1 -0,1 0,0 +0,1 +0,3 +0,6 Precisão Requerida: Faixa mínima permissível é 60 dB %2 (Média)________ % Equipamento é: Aceitável para Uso ______ Não Aceitável para Uso _______ Data de Expiração da Recal bragem_ Faixa total qualificada ________dB a __________ dB = ___________ dB Erro total _________ dB (Do Gráfico acima) Faixa total qualificada ________ dB a __________ dB = ___________ dB Erro total ___________ dB (Do Formulário M-9) Calibrado por ____________________________________ Nível ______________ Local _______________________ Formulário M-8
  • 368.
    ANEXO M AWSD1.1/D1.1M:2010 348 Avaliação de Precisão dB Formulário M-9
  • 369.
    ANEXO M AWSD1.1/D1.1M:2010 349 Avaliação de Precisão dB - AWS A CURVA NO FORMULÁRIO DE EXEMPLO M-9 É DERIVADA DOS CÁLCULOS D FORMULÁRIO M/8. A ÁREA SOMBREADA NO GRÁFICO ACIMA MOSTRA A ÁREA SOBRE A QUAL A UNIDADE DE EXEMPLO SE QUALIFICA PARA ESTE CÓDIGO. Observação: A primeira linha de exemplo de uso do Formulário M-8 é mostrada nesse exemplo Formulário M-9
  • 370.
    ANEXO M AWSD1.1/D1.1M:2010 350 Valores de Nomograma de Decibel (Atenuação ou Ganho) Observação: Ver 6.30.2.3 para instrução no uso desse nomograma. Formulário M-10
  • 371.
    ANEXO M AWSD1.1/D1.1M:2010 351 Valores de Nomograma de Decibel (Atenuação ou Ganho) - AWS Procedimento para uso do Nomograma:  Estender uma linha direta entre a leitura de dec bel da Fileira "a" aplicada à escala C e a percentagem correspondente da Fileira "b" aplicada à escala A.  Usar o ponto em que a linha direta acima cruza a linha pivô B como uma linha pivô para uma segunda linha direta.  Estender uma segunda linha direta do ponto de sinal de média na escala A, através do ponto pivô desenvolvido acima e na escala C de dB.  Esse ponto na escala C é indicativo de dB corrigido para uso na Fileira "c". Observações: 1. A leitura dB e escala de 69% são derivadas da leitura de instrumento e tornam-se dB1 “b” e %1 “c,” respectivamente. 2. %2 é 78 – constante. 3. dB2 (que é dB “d” corrigido) é igual a 20 vezes X log (78/69) + 6 ou 7,1. Formulário M-10
  • 372.
    ANEXO M AWSD1.1/D1.1M:2010 352 Relatório de UT de Soldas Projeto _______________________________________________________________________ Relatório nº _________________________ Identificação de solda ____________________________________________________________ Espessura de material ___________________________________________________________ Junta de solda AWS ______________________________________________________________ Processo de soldagem ___________________________________________________________ Requisitos de qualidade—seção nº ___________________________________________________ Observações ___________________________________________________________________ Número de Linha Número de indicação Ângulo de transdutor A partir da Face Perna a Decibéis Descontinuidade Avaliação de descontinuidade Observações Nível de indicação Nível de referência Fator de atenuação Taxa de indicação comprimento Distância angular (caminho de som) Profundidade da superfície "A" Distância a b c d De X De Y 1 2 3 4 5 6 7 8 9 10 11 12 13 14 15 16 17 18 19 20 21 22 23 24 25 26 Nós, abaixo assinados, certificamos que as declarações nesse registro estão corretas e que as soldas foram preparadas e testadas em conformidade com os requisitos da Cláusula 6, Parte F de D1.1/D1.1M, ( __________ ) Código de Soldagem Estrutural-Aço, da AWS. (ano) Data de teste ___________________________________ Inspecionado por ________________________________ Observação: Esse formulário é aplicável à Cláusula 2, Partes B ou C (Estruturas Não Tubulares Estaticamente e Ciclicamente Carregadas). NÃOT use esse formulário para Estruturas Tubulares (Cláusula 2, Parte D). Formulário M-11 Fabricante ou Empreiteiro ______________________________ Autorizado por _______________________________________ Data ________________________________________________
  • 373.
    ANEXO M AWSD1.1/D1.1M:2010 353 a Usar Perna I, II, ou III. Ver glossário de termos (Anexo M) Observações: 1. Para alcançar Taxa "d" a. Com instrumentos com controle de ganho, usar a fórmula a-b-c=d. a. Com instrumentos com controle de atenuação, usar a fórmula b-a-c=d. c. Um sinal de mais ou menos deve acompanhar o número "d" a menos que "d" seja igual a zero. 2. A distância de X é usada para descobrir o local de uma descontinuidade de solda em uma direção perpendicular à linha de referência de solda. A menos que esse número seja zero, um sinal de mais ou menos deve acompanhá-lo. 3. A distância de Y é usada para descobrir o local de uma descontinuidade de solda em uma direção paralela à linha de referência de solda. O número é alcançado ao medir a distância daextremidade "Y" da solda para o começo da referida descontinuidade. 4. A avaliação de áreas de solda reparadas e testadas novamente devem ser tabuladas em uma nova linha no formulário de relatório. Se o formulário de relatório original for usado, Rn deve ser o prefixo do número de indicação. Se formulários adicionais forem usados, o R número deve ser prefixo do número de relatório.
  • 374.
    ANEXO M AWSD1.1/D1.1M:2010 354 Esta página esá intencionalmente em branco
  • 375.
    AWS D1.1/D1.1M:2010 355 Anexo N(Informativo) Formulários de Amostra de Soldagem Esse anexo não é parte de D1.1/D1.1 M:2010, Código de Soldagem Estrutural-Aço, da AWS, mas está incluído apenas para propósito de informação. Esse anexo contém seis formulários que o Comitê de Soldagem Estrutural aprovou para dados de registro de qualificação WPS, qualificação de soldador, qualificação de operador de soldagem e qualificação de soldador ponteador requeridos por este código. Também inclui formulários de relatório de laboratório para registrar os resultados de NDT de soldas. É recomendado que as informações de qualificação e NDT requeridas por esse código sejam registradas nesses formulários, ou formulários similares que tenham sido preparados pelo usuário. Variações desses formulários para adequação às necessidades do usuário são permitidas. N1. Comentário sobre o uso de Formulário N-1 (Frente) e N-1 (Verso) de WPS O Formulário N-1 pode ser usado para registrar informações para uma WPS ou um PQR. O usuário deveria indicar a aplicação selecionada nas caixas apropriadas ou o usuário pode escolher deixar em branco os cabeçalhos inapropriados. WPS e PQR serão assinados pelo representante autorizado do Fabricante ou Empreiteiro. Para detalhes de junta na WPS, um esboço ou uma referência ao detalhe de junta pré-qualificado aplicável podem ser usados (por exemplo, B-U4a). N2. Pré-qualificada A WPS pode ser pré-qualificada em conformidade com todas as provisões da Cláusula 3, caso em que o documento de uma página Formulário N-1 é requerido. Formulários de Exemplo Exemplos de WPSs e um PQR concluídos foram incluídos para propósito de informação. Os nomes são fictícios e os dados de teste dados não são de nenhum teste real e não devem ser usados. O Comitê acredita que esses exemplos irão ajudar usuários do código a produzir documentação aceitável. N4. Qualificada por Teste A WPS pode ser qualificada por teste em conformidade com as provisões da Cláusula 4. Nesse caso, um PQR de suporte é requerido em acréscimo à WPS. Para o PQR, o Formulário N-1 (Frente) pode novamente ser usado com uma alteração de cabeçalho apropriada. Também, o Formulário N-1 (Verso) pode ser usado para registrar os resultados de teste e a declaração de certificação. Para a WPS, declare as faixas permitidas qualificadas por teste ou declare as tolerâncias apropriadas ou variável essencial, (por exemplo, 250 amps ± 10%). Para o PQR, os detalhes reais de junta e os valores de variáveis essenciais usados no teste deveriam ser registrados. Uma cópia do Relatório de Teste de Fábrica para o material testado deveria ser anexada. Além disso, Relatórios de Dados de Laboratório de Teste também podem ser incluídos como informação de suporte. A inclusão de itens não requeridos pelo código é opcional; no entanto, eles podem ser úteis para configurar o equipamento, ou entender os resultados de teste.
  • 376.
    ANEXO N AWSD1.1/D1.1M:2010 356 ESPECIFICAÇÃO DE PROCEDIMENTO DE SOLDAGEM (WPS) Sim  PRÉ-QUALIFICADA __________ QUALIFICADA POR TESTE __________ ou REGISTROS DE PROCEDIMENTO DE QUALIFICAÇÃO (PQR) Sim  Nome da Empresa __________________________________ Processo(s) de Soldagem __________________________________ PQR de Suporte Nº(s) __________________________________ PROJETO DE JUNTA USADO Tipo: Única  Solda Dupla  Reforço. Sim  Não Material de Reforço: Abertura de Raiz _____ Dimensão de Face de Raiz _______ Ângulo de Chanfro. __________________ Raio (J–U) ____________ Goivagem por Trás: Sim Não  Método _____________________ METAIS BASE Especificação de Material ____________________________ Tipo ou Grau ______________________________________ Espessura: Chanfro __________________ Filete ______________ Diâmetro (Cano)____________________________________________ METAIS DE ADIÇÃO Especificação AWS________________________________________ Classificação AWS _________________________________________ PROTEÇÃO Fluxo _________________ Gás ____________________________ Composição ______________________ Eletrodo-Fluxo (Classe)____Taxa de Fluxo ____________________ _________________________ Tamanho do Bocal de Gás _________ PRÉ-AQUECIMENTO Temp. Pré-aquecimento, Mín. _______________________________ Temp. de Interpasse, Mín. __________ Máx. ______________ Identificação # __________________________________________ Revisão ________ Data __________ Por ______________ Autorizado por ____________________ Data ___________ Tipo—Manual  Semi-automático  Mecanizado  Automático  POSIÇÃO Posição de Chanfro: ____________ Filete: ____________ Progressão Vertical: Para Cima  Para Baixo  CARACTERÍSTICAS ELÉTRICAS __________ _____________ Modo de Transferência (GMAW) Curto-Circuito  Globular  Pulverização  Corrente: AC  DCEP  DCEN  Pulsada  Fonte de Energia: CC  CV  Outros __________ ________________________________ Eletrodo de Tungstênio (GTAW) Tamanho: ______________ Tipo: _____________ TÉCNICA Passe estreito ou Escamas de Solda: __________________ Passe Múltiplo ou Único (por lado) _________________ Número de Eletrodos ______________________________ Espaçamento de Eletrodo Longitudinal ____________________ Lateral ________________________ Ângulo ________________________ Tubo de Contato para Distância de Trabalho ____________ Martelamento ____________________________________ Limpeza de Interpasse: _____________________________ TRATAMENTO TÉRMICO PÓS-SOLDA Temp. ________________________________________________ Tempo ________________________________________________ PROCEDIMENTO DE SOLDAGEM Passe ou Solda Camada(s) Processo Metais de Adição Corrente Volts Velocidade de Deslocamento Detalhes de Junta Classe Diâmetro Tipo & Polaridade Amps ou Arame Velocidade de Alimentação Formulário N-1 (Frente)
  • 377.
    AWS D1.1/D1.1M:2010 ANEXON 357 ESPECIFICAÇÃO DE PROCEDIMENTO DE SOLDAGEM (WPS) Sim  PRÉ-QUALIFICADA X QUALIFICADA POR TESTE __________ ou REGISTROS DE PROCEDIMENTO DE QUALIFICAÇÃO (PQR) Sim  Nome da Empresa LECO Processo(s) de Soldagem SAW PQR de Suporte Nº(s) Pré/qualificado PROJETO DE JUNTA USADO Tipo: Topo Única  Solda Dupla  Reforço. Sim  Não Material de Reforço: ASTM A36 Abertura de Raiz 5/8” Dimensão de Face de Raiz - Ângulo de Chanfro. 20° Raio (J–U) - Goivagem por Trás: Sim Não  Método - METAIS BASE Especificação de Material ASTM A36 Tipo ou Grau - Espessura: Chanfro 1” Filete - Diâmetro (Cano) - METAIS DE ADIÇÃO Especificação AWS A5.17 Classificação AWS EM12K PROTEÇÃO Fluxo 860 Gás - Composição - Eletrodo-Fluxo (Classe) Taxa de Fluxo - F7A12-EM12K Tamanho do Bocal de Gás - PRÉ-AQUECIMENTO Temp. Pré-aquecimento, Mín. 150° F Temp. de Interpasse, Mín. 150° F Máx. 350° F Identificação # W2081 Revisão 2 Data 3-1-89 Por R. Jones Autorizado por C.W. Haye Data Tipo—Manual  Semi-automático  Mecanizado  Automático  POSIÇÃO Posição de Chanfro: F Filete: - Progressão Vertical: Para Cima  Para Baixo  CARACTERÍSTICAS ELÉTRICAS _______________________ Modo de Transferência (GMAW) Curto-Circuito  Globular  Pulverização  Corrente: AC  DCEP  DCEN  Pulsada  Fonte de Energia: CC  CV  Outros Eletrodo de Tungstênio (GTAW) Tamanho: Tipo: TÉCNICA Passe estreito ou Escamas de Solda: Passe estreito Passe Múltiplo ou Único (por lado) Passe Múltiplo Número de Eletrodos 1 Espaçamento de Eletrodo Longitudinal - Lateral - Ângulo - Tubo de Contato para Distância de Trabalho _1-1/4”_________ Martelamento Nenhum Limpeza de Interpasse: Escória removida TRATAMENTO TÉRMICO PÓS-SOLDA Temp. N.D Tempo - PROCEDIMENTO DE SOLDAGEM Passe ou Solda Camada(s) Processo Metais de Adição Corrente Volts Velocidade de Deslocamento Detalhes de Junta Classe Diâmetro Tipo & Polaridade Amps ou Arame Velocidade de Alimentação 1-n SAW EM12 K 5/32" DC+ 45 ipm 550 Amps ±10% 28 V ±7% 16 ipm ±15% Formulário N-1 (Frente)
  • 378.
    AWS D1.1/D1.1M:2010 ANEXON 358 ESPECIFICAÇÃO DE PROCEDIMENTO DE SOLDAGEM (WPS) Sim  PRÉ-QUALIFICADA QUALIFICADA POR TESTE __________ ou REGISTROS DE PROCEDIMENTO DE QUALIFICAÇÃO (PQR) Sim  Nome da Empresa RED. Inc. Processo(s) de Soldagem F. CAW PQR de Suporte Nº(s) - PROJETO DE JUNTA USADO Tipo: Topo Única  Solda Dupla  Reforço. Sim  Não Material de Reforço: ASTM A 131A Abertura de Raiz 1/4” Dimensão de Face de Raiz - Ângulo de Chanfro 35° Raio (J–U) - Goivagem por Trás: Sim Não  Método - METAIS BASE Especificação de Material ASTM A131 A Tipo ou Grau A Espessura: Chanfro 1” Filete - Diâmetro (Cano) - METAIS DE ADIÇÃO Especificação AWS A5.20 Classificação AWS E71T-1 PROTEÇÃO Fluxo - Gás CO2 Composição 100% CO2 Eletrodo-Fluxo (Classe) Taxa de Fluxo 4SCFH F7A12-EM12K Tamanho do Bocal de Gás #4 PRÉ-AQUECIMENTO Temp. Pré-aquecimento, Mín. 75° (AMBIENTE) Temp. de Interpasse, Mín. 75° F Máx. 350° F _______ Identificação # PQR 231 Revisão 1 Data 1-12-87 Por W. Lye Autorizado por J. Jones. Data 18-1-88 Tipo—Manual  Semi-automático  Mecanizado  Automático  POSIÇÃO Posição de Chanfro: F Filete: ______-______ Progressão Vertical: Para Cima  Para Baixo  CARACTERÍSTICAS ELÉTRICAS _____________________________ Modo de Transferência (GMAW) Curto-Circuito  Globular  Pulverização  Corrente: AC  DCEP  DCEN  Pulsada  Fonte de Energia: CC  CV  Outros __________ ________________________________ Eletrodo de Tungstênio (GTAW) Tamanho: ______________ Tipo: _____________ TÉCNICA Passe estreito ou Escamas de Solda: Passe estreito Passe Múltiplo ou Único (por lado) Passe Múltiplo Número de Eletrodos 1 Espaçamento de Eletrodo Longitudinal - Lateral - Ângulo - Tubo de Contato para Distância de Trabalho 1-1/4” Martelamento Nenhum Limpeza de Interpasse: Escova de Aço TRATAMENTO TÉRMICO PÓS-SOLDA Temp. N.D Tempo - PROCEDIMENTO DE SOLDAGEM Passe ou Solda Camada(s) Processo Metais de Adição Corrente Volts Velocidade de Deslocamento Detalhes de Junta Classe Diâmetro Tipo & Polaridade Amps ou Arame Velocidade de Alimentação 1 2-8 9-11 12-15 16 FCAW " " " " E71T- 1 " " " " ,045" " " " " DC+ " " " " 180 200 200 200 200 26 27 27 27 27 8 10 11 9 11 Formulário N-1 (Frente)
  • 379.
    AWS D1.1/D1.1M:2010 ANEXON 359 ESPECIFICAÇÃO DE PROCEDIMENTO DE SOLDAGEM (WPS) Sim  PRÉ-QUALIFICADA QUALIFICADA POR TESTE _____X_____ ou REGISTROS DE PROCEDIMENTO DE QUALIFICAÇÃO (PQR) Sim  Nome da Empresa RED. Inc. Processo(s) de Soldagem F. CAW PQR de Suporte Nº(s) PQR 231 PROJETO DE JUNTA USADO Tipo: Topo Única  Solda Dupla  Reforço. Sim  Não Material de Reforço: ASTM A 131A Abertura de Raiz 1/4” Dimensão de Face de Raiz - Ângulo de Chanfro. 35° Raio (J–U) - Goivagem por Trás: Sim Não  Método - METAIS BASE Especificação de Material ASTM A 131 Tipo ou Grau A Espessura: Chanfro 1” Filete - Diâmetro (Cano) - METAIS DE ADIÇÃO Especificação AWS A5.20 Classificação AWS E71T-1 PROTEÇÃO Fluxo - Gás CO2 Composição 100% CO2 Eletrodo-Fluxo (Classe) Taxa de Fluxo 45-55CFH F7A12-EM12K Tamanho do Bocal de Gás #4 PRÉ-AQUECIMENTO Temp. Pré-aquecimento, Mín. 60° (AMBIENTE) Temp. de Interpasse, Mín. 60° F Máx. 350° F _______ Identificação # PQR 231 Revisão 1 Data 1-12-87 Por W. Lye Autorizado por J. Jones. Data 18-1-88 Tipo—Manual  Semi-automático  Mecanizado  Automático  POSIÇÃO Posição de Chanfro: 0.H Filete: ______- Progressão Vertical: Para Cima  Para Baixo  CARACTERÍSTICAS ELÉTRICAS ____________________________ Modo de Transferência (GMAW) Curto-Circuito  Globular  Pulverização  Corrente: AC  DCEP  DCEN  Pulsada  Fonte de Energia: CC  CV  Outros __________ ________________________________ Eletrodo de Tungstênio (GTAW) Tamanho: Tipo: TÉCNICA Passe estreito ou Escamas de Solda: Passe estreito Passe Múltiplo ou Único (por lado) Passe Múltiplo Número de Eletrodos 1 Espaçamento de Eletrodo Longitudinal Lateral - Ângulo - Tubo de Contato para Distância de Trabalho 1/2-1” Martelamento Nenhum Limpeza de Interpasse: Escova de Aço TRATAMENTO TÉRMICO PÓS-SOLDA Temp. N.D Tempo. N.D PROCEDIMENTO DE SOLDAGEM Passe ou Solda Camada(s) Processo Metais de Adição Corrente Volts Velocidade de Deslocamento Detalhes de Junta Classe Diâmetro Tipo & Polaridade Amps ou Arame Velocidade de Alimentação Todos FCAW E71T- 1 ,045" DC+ 180-220A 25- 26V 8-12 ipm Formulário N-1 (Frente)
  • 380.
    AWS D1.1/D1.1M:2010 ANEXON 360 Registro de Qualificação de Procedimento (PQR) # __________ Resultados de Teste TESTE DE TRAÇÃO Espécime Nº Largura Espessura Área Carga de Tração de Ruptura, lb Tensão de Ruptura da Unidade, psi Caráter de Falha e Local TESTE DE FLEXÃO GUIADO Espécime Nº Tipo de Flexão Resultado Observações INSPEÇÃO VISUAL Aparência ______________________________________ Mordedura ______________________________________ Porosidade de encanamento _______________________ Convexidade ____________________________________ Data de teste ____________________________________ Testemunhado por _______________________________ Outros Testes Exame Radiográfico-de ultrassonografia Relatório RT nº: _________ Resultado________________ Relatório UT nº: _________ Resultado________________ RESULTADOS DE TESTE DE SOLDA DE FILETE Tamanho mínimo de passe múltiplo Tamanho máximo de passe único Análise Macrográfica Análise Macrográfica 1. __________ 3. __________ 1. __________ 3. ________ 2. __________ 2. __________ Teste de tensão de metal depositado Tensão de tração, psi ______________________________ Limite de escoamento/elasticidade, psi __________________ Alongamento em 2 in, % _____________________________ Teste de laboratório nº ______________________ Nome do Soldador ____________________________ Relógio nº Selo nº ________________ Testes conduzidos por ________________________ Laboratório ________________________________________ Número do teste___________________________________ Por __________________________________________ Nós, abaixo assinados, certificamos que as declarações nesse registro estão corretas e que as soldas foram preparadas e testadas em conformidade com os requisitos da Cláusula 4, de D1.1/D1.1M, ( __________ ) Código de Soldagem Estrutural—Aço, da AWS. (ano) Assinado _____________________________________ Fabricante ou Empreiteiro Por _______________________________________ Título _______________________________________ Data _______________________________________ Formulário N-1 (Verso)
  • 381.
    AWS D1.1/D1.1M:2010 ANEXON 361 Registro de Qualificação de Procedimento (PQR) # __________ Resultados de Teste TESTE DE TRAÇÃO Espécime Nº Largura Espessura Área Carga de Tração de Ruptura, lb Tensão de Ruptura da Unidade, psi Caráter de Falha e Local 231-1 0,75'' 1,00'' 0,75'' 52 500 70 000 Dúctil 231-3 0,75'' 1,00'' 0,75'' 52 275 69 700 Dúctil TESTE DE FLEXÃO GUIADO Espécime Nº Tipo de Flexão Resultado Observações 231-2 Lado Passe 231-4 Lado Passe Pequena (<1/16") abertura aceitável 231-6 Lado Passe 231-5 Lado Passe INSPEÇÃO VISUAL Aparência aceitável Mordedura aceitável Porosidade de encanamento nenhuma Convexidade nenhuma Data de teste 3-12-02 Testemunhado por D. Davis Outros Testes Exame Radiográfico-de ultrassonografia Relatório RT nº: D231 Resultado passou Relatório UT nº: _________ Resultado________________ RESULTADOS DE TESTE DE SOLDA DE FILETE Tamanho mínimo de passe múltiplo Tamanho máximo de passe único Análise Macrográfica Análise Macrográfica 1. __________ 3. __________ 1. __________ 3. ________ 2. __________ 2. __________ Teste de tensão de metal depositado Tensão de tração, psi 83,100 Limite de escoamento/elasticidade, psi 72,600 Alongamento em 2 in, % 28 Teste de laboratório nº PW 31 Nome do Soldador W.T. Williams Relógio nº 261 Selo nº ________________ Testes conduzidos por RED Inc. & ABC Testing Laboratório Número do teste PQR 231 Por D. Miller Nós, abaixo assinados, certificamos que as declarações nesse registro estão corretas e que as soldas foram preparadas e testadas em conformidade com os requisitos da Cláusula 4, de D1.1/D1.1M, ( 2002 ) Código de Soldagem Estrutural—Aço, da AWS. (ano) Assinado RED. Inc. Fabricante ou Empreiteiro Por ___R. M. Boncrack __________________ Título Q.C. Mgr. Data 15-12-2002 Formulário N-1 (Verso)
  • 382.
    AWS D1.1/D1.1M:2010 ANEXON 362 REGISTRO DE TESTE DE QUALIFICAÇÃO WPS PARA SOLDAGEM DE ELETROESCÓRIA E ELETROGÁS ESPECIFICAÇÃO DE PROCEDIMENTO Especificação de material ________________________ Processo de soldagem ____________________________ Posição de soldagem _____________________________ Especificação de metal de adição ___________________ Classificação de metal de adição ____________________ Metal de adição _________________________________ Fluxo _________________________________________ Gás de proteção _____________ Taxa de fluxo ________ Ponto de orvalho do gás _________________________ Faixa de espessura que esse teste qualifica. _________ Passe único ou múltiplo __________________________ Arco único ou múltiplo ___________________________ Corrente de soldagem ____________________________ Temperatura de pré-aquecimento ___________________ Temperatura de pós-aquecimento ___________________ Nome do soldador _______________________________ Flexibilidade do tubo guia __________________________ Composição do tubo guia __________________________ Diâmetro do tubo guia ____________________________ Velocidade de subida vertical _______________________ Comprimento transversal __________________________ Velocidade transversal ____________________________ Contato ________________________________________ Tipo de sapata de modelagem ______________________ INSPEÇÃO VISUAL (Tabela 6.1, Limitações ciclicamente carregadas) Aparência ______________________________________ Mordedura______________________________________ Porosidade de encanamento _______________________ Data de teste ___________________________________ Testemunhado por ______________________________ RESULTADOS DE TESTE Teste de tração de seção reduzida Tensão de tração, psi 1. ______________________________________________ 2. ______________________________________________ Teste de tensão de metal depositado Tensão de tração, psi _____________________________ Limite de escoamento/elasticidade, psi ________________ Alongamento em 2 in, % ____________________________ Testes de flexão lateral 1. ____________________ 3. ___________________ 2. ____________________ 4. ___________________ Exame Radiográfico-de ultrassonografia Relatório RT nº ___________________________________ Relatório UT nº ___________________________________ Testes de impacto Tipo de espécime ___________ Temp. de teste _________ Ft-lbs: 1. _______ 2. ________ 3. ________ 4. _________ 5. ________ 6. _________ Médio ____________________ Alto _________________ Baixo _____________________ Teste de laboratório nº _____________________________ PROCEDIMENTO DE SOLDAGEM Passe Nº Tamanho de Eletrodo Corrente de soldagem Detalhe de Junta Ampères Volts Nós, abaixo assinados, certificamos que as declarações nesse registro estão corretas e que as soldas foram preparadas, soldadas, e testadas em conformidade com os requisitos da Cláusula 4, de D1.1/D1.1M, ( _____ ) Código de Soldagem Estrutural—Aço, da AWS. (ano) Procedimento no. _______________________________ Fabricante ou Empreiteiro _______________________ Revisão no ____________________________________ Autorizado por Data Formulário N-3
  • 383.
    AWS D1.1/D1.1M:2010 ANEXON 363 REGISTRO DE TESTE DE QUALIFICAÇÃO DE SOLDADOR, OPERADOR DE SOLDAGEM OU SOLDADOR PONTEADOR Tipo de Soldador ________________________________________________ Nome _________________________________________________________ Identificação Nº ____________________ Especificação de Procedimento de Soldagem No____________ Rev.___________________ Data__________________ Valores Reais de Registro Usados em Qualificação Faixa de Qualificação Variáveis Processo/Tipo [Tabela 4.12, Item (1)] Eletrodo (único ou múltiplo) [Tabela 4.12, Item (7)] Corrente/Polaridade Posição [Tabela 4.12, Item (4)] Progressão de Solda [Tabela 4.12, Item (5)] Reforço (SIM ou NÃO) [Tabela 4.12, Item (5)] Material/Especificação para Metal Base: Espessura: (Placa) Chanfro Filete Espessura: (Cano/tubo) Chanfro Filete Diâmetro: (Cano) Chanfro Filete Metal de Adição (Tabela 4.12) Especificação Nº Classe F-Nº [Tabela 4.12, Item (2)] Tipo de Gás/Fluxo (Tabela 4.12) Outro INSPEÇÃO VISUAL (4.9.1) Aceitável SIM ou NÃO _____ Resultados de Teste de Flexão Guiada (4.31.5) Tipo Resultado Tipo Resultado Resultados de Teste de Filete (4.31.2 3 e 4.31.4.1) Aparência Tamanho de Filete ___________________ Penetração de Raiz de Teste de Fratura _____________________ Análise Macrográfica ________________ (Descreve o local, natureza e tamanho de qualquer trinca ou ruptura do espécime.) Inspecionado por ________________________________ Número do Teste _____________________________________ Organização ___________________________________ Data ___________________________________________ RESULTADOS DE TESTE RADIOGRÁFICO (4.31.3.2) Identificação de Filme Número Resultados Observações Identificação de Filme Número Resultados Observações Nós, abaixo assinados, certificamos que as declarações nesse registro estão corretas e que as soldas foram preparadas, soldadas, e testadas em conformidade com os requisitos da Cláusula 4, de D1.1/D1.1M, ( _____ ) Código de Soldagem Estrutural—Aço, da AWS. (ano) Inspecionado por _____________________________________ Número do Teste ________________________________ Organização ________________________________________ Data ___________________________________________ (ano) Fabricante ou Empreiteiro _______________________ Autorizado Por _________________________________________ Data ___________________________________________________ Formulário N-4
  • 384.
    AWS D1.1/D1.1M:2010 ANEXON 364 RELATÓRIO DE EXAME RADIOGRÁFICO DE SOLDAS Projeto ___________________________________________________________________________________________ Requisitos de qualidade—seção nº _____________________________________________________________________ Relatado para _______________________________________________________________________________________ LOCAL DE SOLDA E ESBOÇO DE IDENTIFICAÇÃO Técnica Fonte ____________________________________ Filme a fonte _______________________________ Tempo de exposição ________________________ Telas _____________________________________ Tipo de filme _______________________________ (Descreve comprimento, largura e espessura de todas as juntas radiografadas) Data Identificação de solda Área Interpretação Reparos Observações Aceitaçã o Rejeição Aceitaçã o Rejeição Nós, abaixo assinados, certificamos que as declarações nesse registro estão corretas e que as soldas foram preparadas e testadas em conformidade com os requisitos de D1.1/D1.1M, ( __________ ) Código de Soldagem Estrutural—Aço, da AWS. (ano) Técnico de Radiografia(s) _________________________ Fabricante ou Empreiteiro ____________________ Intérprete ______________________________________ Autorizado por _________________________ Data de teste ___________________________________ Data ________________________________________ Formulário N-7
  • 385.
    AWS D1.1/D1.1M:2010 ANEXON 365 RELATÓRIO DE EXAME MAGNÉTICO DE PARTÍCULAS DE SOLDAS Projeto _________________________________________________________________________________________ Requisitos de qualidade—Seção Nº ____________________________________________________________________ Relatado para ______________________________________________________________________________________ LOCAL DE SOLDA E ESBOÇO DE IDENTIFICAÇÃO Área Examinada Interpretação Reparos Data Identificação de solda Todo Especificação Aceitação Rejeição Aceitação Rejeição Observações PRÉ-EXAME Preparação de Superfície: _____________________________________________________________________________ EQUIPAMENTO Fabricação de Instrumento: _______________ Modelo: _____________ S. Nº: _____________________ MÉTODO DE INSPEÇÃO  Seco  Molhado Visível  Fluorescente Como a Mídia foi Aplicada: _________________________________  Residual  Contínuo  Verdadeiro-Contínuo  AC  DC  Meia-Onda  Prods  Encaixe  Invólucro de Cabo Outro ______________ Direção de Campo:  Circular  Longitudinal Resistência de Campo: _ ________________________________ (Voltas de ampère, densidade de campo, força magnetizante, número e duração de aplicação de força.) PÓS EXAME Técnica de Desmagnetização (se requerida): ______________________________________________________________ Limpeza (se necessária): Método de Marcação: _______________________________ Nós, abaixo assinados, certificamos que as declarações nesse registro estão corretas e que as soldas foram preparadas e testadas em conformidade com os requisitos de D1.1/D1.1M, ( __________ ) Código de Soldagem Estrutural—Aço, da AWS. (ano) Inspetor _________________________________ Fabricante ou Empreiteiro ______________________________ Nível ___________________________________ Autorizado Por _______________________________________ Data de _____________________________ Data _____________________________ Formulário N-8
  • 386.
    AWS D1.1/D1.1M:2010 ANEXON 366 FORMULÁRIO DE DADOS DE TESTE DE QUALIFICAÇÃO DE APLICAÇÃO DE SOLDAGEM DE PINO PELA SUBCLÁUSULA 7.6 Sim  TESTE DE PRÉ-PRODUÇÃO PELA SUBCLÁUSULA 7.7.1. (WPS) Sim  OU REGISTRO DE PROCEDIMENTO DE QUALIFICAÇÃO (PQR) Sim  OU REGISTRO DE QUALIFICAÇÃO DE SOLDADOR (WQR) Sim  Nome da empresa ________________________________________ Nome do Operador _______________________________________ Número do teste ________________________________________ Material de pino de solda ___________________________________ Tamanho de pino de solda e PN#/Fabricante ___________________ Material Base Especificação ____________________________________________ Liga ou têmpera ___________________________________ Condição de superfície HR  CR  Revestimento ____________________________________________ Método de limpeza ________________________________________ Medidor de cobertura ______________________________________ Forma de Material Base Tubo Redondo Plano Raio Interno Externo Interno do Ângulo Espessura _______________________________________________ Grampo Fixador Peça Nº/Fabricante ________________________________________ Descrição do grampo fixador________________________________ Dados de Equipamento Configurações de Aplicação, Corrente e Configurações de Tempo Fabricação __________________ Modelo ___________________ Pistola de pino: Fabricação ____________________________ Modelo____________ Tempo de solda (segundos) ________________________________ Corrente (amperagem)____________________________________ Polaridade: DCEN ____________________ DCEP_______________ Elevação ________________________________________________ Êmbolo (protrusão) ________________________________________ Tamanho de cabo de solda ______ Comprimento ____________ Número de retificações (peça lidera) ____________________ Esboço de Base de Pino/Detalhe de Aplicação Posição de Soldagem Plana  Horizontal  Angular—graus a partir de normal  Suspensa  Gás de Proteção Gás(es) de Proteção/Composição __________________________ Taxa de fluxo _________________________________________ RESULTADOS DE TESTE DE SOLDA Parafuso Nº Aceitação Visual Opção #1 Teste de Flexão Opção #2 Teste de Tensão Opção #3 Teste* de Torque 1 2 3 4 6 7 8 9 10 *Observação: Teste de torque opcional apenas para fixação de encadeamento. Testes mecânicos conduzidos por ______________________________ Data ________________________ (Empresa) Nós, abaixo assinados, certificamos que as declarações nesse registro estão corretas e que as soldas foram preparadas e testadas em conformidade com os requisitos da Cláusula 7 de D1.1/D1.1M, ( __________ ) Código de Soldagem Estrutural— Aço, da AWS. (ano) Assinado por ___________________________ Título _________________ Data ___________________ (Empreiteiro/Aplicador/Outro) Empresa _____________________________________ Formulário N-9
  • 387.
    AWS D1.1/D1.1M:2010 367 Anexo O Diretrizespara a Preparação de Questões Técnicas para o Comitê de Soldagem Estrutural Esse anexo não é parte de D1.1/D1.1 M:2010, Código de Soldagem Estrutural-Aço, da AWS, mas está incluído apenas para propósito de informação. O1. Introdução A diretoria da Sociedade Americana de Soldagem (AWS) adotou uma política em que todas as interpretações oficiais de padrões da AWS são tratadas de uma maneira formal. Sob essa política, todas as interpretações são feitas pelo comitê que é responsável pelo padrão. Comunicação oficial a respeito dessa interpretação é dirigida através dos membros da equipe AWS que trabalham no comitê. A política requer que todas os pedidos de interpretação sejam submetidos por escrito. Tais pedidos serão respondidos tão rápido quanto possível, mas devido à complexidade do trabalho e os procedimentos que precisam ser seguidos, algumas interpretações podem tomar um tempo considerável. O2. Procedimento Todas as questões devem ser dirigidas a: Managing Director Technical Services Division American Welding Society 550 N.W. LeJeune Road Miami, FL 33126, EUA Todas as inquirições devem conter o nome, endereço e afiliação do inquiridor, e devem fornecer informações suficientes ao comitê para entender o ponto de concernência na inquirição. Quando o ponto não é claramente definido, a inquirição será devolvida para esclarecimento. Para tratamento mais eficiente, todas as questões deveriam ser datilografadas e estar no formato descrito abaixo. 02.1 Âmbito. Cada inquirição deve tratar de uma única provisão do código, a menos que o ponto da inquirição envolva duas ou mais provisões interrelacionadas. A provisão deve ser identificada no âmbito da inquirição assim como a edição do código que contém a provisão da qual o inquiridor está tratando. 02.2 Propósito da Inquirição. O propósito da inquirição deve ser colocado nessa parte da inquirição. O propósito pode ser obter uma interpretação de um requisito do código, ou requisitar a revisão de uma provisão particular do código. 02.3 Conteúdo da Inquirição. A inquirição deveria ser concisa, porém completa, para permitir que o comitê compreenda rápida e completamente o ponto da inquirição. Esboços deveriam ser usados quando apropriado e todos os parágrafos, figuras e tabelas (ou o Anexo), que têm ligação com a inquirição devem ser citados. Se o ponto da inquirição é obter uma revisão do código, a inquirição precisa fornecer justificativa técnica para essa revisão. 02.4 Resposta Proposta. O inquiridor deveria, como resposta proposta, estabelecer uma interpretação da provisão que é o ponto da inquirição, ou os termos para uma revisão proposta, se é isso que o inquiridor busca. O3. Interpretação de Provisões do Código Interpretações de provisões do código são feitas pelo Comitê de Soldagem Estrutural. O secretário do comitê transmite todas as inquirições para a direção do subcomitê particular que tem uma jurisdição sobre a parte do código tratada pela inquirição. O subcomitê revisa a inquirição e a resposta proposta para determinar qual deveria ser a resposta à inquirição. Em seguida ao desenvolvimento que o subcomitê dá à resposta, a inquirição e a resposta são apresentadas a todo o
  • 388.
    AWS D1.1/D1.1M:2010 ANEXOO 368 Comitê de Soldagem Estrutural para revisão e aprovação. Após aprovação pelo comitê, a interpretação é uma interpretação oficial da Sociedade, e o secretário transmite a resposta ao inquiridor e ao Welding Journal para publicação. O4. Publicação de Interpretações Todas as interpretações oficiais devem aparecer no Welding Journal e serão postadas no website da AWS. O5. Inquirições por Telefone Inquirições por telefone ao Escritório da AWS a respeito do Código de Soldagem Estrutural deveriam ser limitadas a questões de natureza geral ou a assuntos diretamente relacionados com o uso desse código. A política da Diretoria da AWS requer que todos os membros da equipe da AWS respondam a pedidos telefônicos Head- quarters staff cannot provide consulting services. How- ever, the staff can refer a caller to any of those consultants whose names are on file at AWS Headquarters. O6. Comitê de Soldagem Estrutural A atividades do Comitê de Soldagem Estrutural a respeito de interpretações são estritamente limitadas às interpretações de provisões do código ou à conideração de revisões a provisões existentes com base em novos dados ou tecnologia. Nem a equipe da AWS nem os comitês estão em posição de oferecer servições de interpretação ou consultoria sobre: (1) problemas específicos de engenharia ou (2) requisitos do código aplicados a fabricações fora do âmbito do código ou pontos não especificamente abordados pelo código. Em tais casos, o inquiridor deveria buscar assistência de um engenheiro competente com experiência no campode interesse particular.
  • 389.
    ANEXO P AWSD1.1/D1.1M:2010 369 Anexo P (Informativo) Ângulo Diedro Local Esse anexo não é parte de Dl.l/D1.1M:2010, Código Soldagem Estrutural - Aço, mas foi incluído apenas para propósitos informativos.
  • 390.
    ANEXO P AWSD1.1/D1.1M:2010 370
  • 391.
    ANEXO P AWSD1.1/D1.1M:2010 371
  • 392.
    ANEXO P AWSD1.1/D1.1M:2010 372
  • 393.
    ANEXO P AWSD1.1/D1.1M:2010 373
  • 394.
    AWS D1.1/D1.1M:2010 ANEXOR 374 Esta página está intencionalmente em branco
  • 395.
    AWS D1.1/D1.1M:2010 375 Anexo Q(Informativo) Conteúdos de WPS Pré-qualificado Este anexo não é parte da AWS Dl.l/D1.1M:2010, Código de Soldagem Estrutural - Aço, mas é incluído apenas com propósitos informativos. Soldagem pré-qualificada requer uma WPS por escrito referindo-se às subcláusulas do código a seguir conforme aplicável a ligações soldadas de interesse. Além dos requisitos para uma WPS por escrito, esse código impõe muitos outros requisitos e limitações para soldagem pré-qualificada. A organização usando soldagem pré-qualificada deve estar em confomidade com todos os requisitos relevantes. A especificação da WPS pode atender as necessidades dos usuários. Itens tais como tolerâncias de montagem podem ser consultadas. 1.2 Limitações 5.2.2 Metal Base para Reforço, Espaçadores e Guia de Solda 2.4.1.4 Tamanho Efetivo de Soldas em Chanfro Curvado 5.3.1.2 Adequação de Classificação 2.4.2.7 Soldas de Filete de Reforço 5.3.2 Eletrodos SMAW 2.4.4.2 Extremidades de Ranhuras 5.3.3 Eletrodos e Fluxos SAW 2.4.3 Juntas Oblíquas em T 5.3.4 Eletrodos GMAW/FCAW 3.2.1 Processos Pré-qualificados 5.5 Variáveis WPS 3.3 Combinações de Metal Base / Metal de Adição 5.7 Controle de Aporte de Calor para Aços Resfriados e Temperados. 3.5 Requisitos de Temperaturas Mínimas de Pré- aquecimento e Interpasse 5.10 Reforço 3.6 3.7 Limitação de Variáveis de WPS 5.14 Tamanhos Mínimos de Solda de Filete 3.7 Requisitos Gerais de WPS 5.15 Preparação de Metal Base 3.9.3 Juntas Oblíquas em T 5.22.1.1 Superfície de Contato 3.10 Requisitos para Soldas de Tampão (Soldas Plug e Slot) 5.25 Técnica para Soldas de Tampão (Plug e Slot) 3.12 Requisitos de PJP 5.27 Martelamento 3.13 Requisitos de Solda em Chanfro com CJP 5.30.1 Limpeza Durante o Processo Tabela 3.8 Variáveis de WPSs Pré-qualificadas 7.5.5 Opção de solda de filete de FCAW, GMAW, SMAW 7.7.5 Reparo da área de remoção
  • 396.
    AWS D1.1/D1.1M:2010 376 Esta páginaesá intencionalmente em branco
  • 397.
    AWS D1.1/D1.1M:2010 377 Anexo R(Informativo) Práticas Seguras Este anexo não é parte da AWS Dl.l/D1.1M:2010, Código de Soldagem Estrutural - Aço, mas é incluído apenas com propósitos informativos. Este anexo cobre muitos dos elementos básicos de segurança geral dos processos de solda a arco. Ele inclui muitos, mas não todos, aspectos de segurança da soldagem estrutural. Os riscos que serão encontrados e as práticas que irão minimizar ferimentos pessoais e estragos materiais são revistos aqui. Rl. Riscos Elétricos Choque elétrico pode matar. No entanto, pode ser evitado. Partes elétricas ligadas não devem ser tocadas. Leia e entenda as instruções do fabricante e as práticas de segurança recomendadas. Instalação defeituosa, aterramento impróprio e operação e manutenção incorretas de equipamentos elétricos são todos fontes de perigo. Todo equipamento elétrico e peça de trabalho devem ser aterrados. Uma conexão separada é requerida para aterrar a peça de trabalho. O neutro de trabalho não deve ser confundido com a conexão de aterramento. Para prevenir choque, a área de trabalho, o equipamento e as roupas devem ser mantidos secos todo o tempo. Luvas secas e sapatos com sola de borracha devem ser usados. O soldador deve ficar num tablado seco ou plataforma isolada. Cabos e conectores devem ser mantidos em boas condições. Cabos gastos, estragados ou sem isolamento não sevem ser usados. Em caso de choque elétrico, a força deve ser desligada imediatamente. Se o socorrista tiver que afastar a vítima de um contato ativo, deve usar materiais não-condutores. Deve-se chamar um médico e a CPR (recuperação cardio-pulmonar) deve continuar até que a respiração seja restaurada, ou até a chegada do médico. Veja Referências 8, 7, e 10. R2. Fumaças e Gases Muitas soldagens, cortes e processos associados produzem fumaças e gases que podem ser danosos à saúde. Fumaças e partículas sólidas se originam dos materiais consumidos na soldagem, da base metálica, e quaisquer coberturas presentes na base metálica. Gases são produzidos durante o processo de soldagem pelos efeitos dos processos de radiação no ambiente ao redor. Todos os associados com operações de soldagem devem adequar-se aos efeitos dessas fumaças e gases. Os possíveis efeitos de superexposição a fumaças e gases vão da irritação dos olhos, pele e sistema respiratório a complicações mais severas. Efeitos podem ocorrer imediata ou posteriormente. Fumaças podem causar sintomas tais como náusea, dores de cabeça, tonturas e febre de fumaça de metal. Ventilação suficiente, escapamento no arco, ou ambos, devem ser usados para manter fumaças e gases longe das zonas de respiração e área de trabalho em geral. Para informações mais detalhadas sobre fumaças e gases produzidos pelos vários processos de soldagem, veja Referências 1, 4, e 11. R3. Ruído Ruído excessivo é um conhecido risco à saúde. Exposição a ruído excessivo pode levar à perda de audição. Esta perda de audição pode ser total ou parcial, temporária ou permanente. Ruído excessivo afeta adversamente a capacidade de audição. Além disso, há indicações de que o ruído excessivo afeta outras funções corporais e de comportamento. Aparelhos de proteção pessoal tais como abafadores auriculares e tampões auriculares devem ser empregados. Geralmente, estes aparelhos apenas são aceitos quando os controles de engenharia não são totalmente eficazes. Ver Referências 1, 5, e 11.
  • 398.
    AWS D1.1/D1.1M:2010 ANEXOR 378 R4. Proteção contra queimaduras Metal derretido, fagulhas, escória e superfícies quentes são produzidos pelos processos de soldagem, corte e afins. Estes podem causar queimaduras se não forem tomadas medidas de precaução. Os operários devem usar roupa protetora de material resistente a fogo. Bainhas de calças ou roupas com bolsos abertos ou outros lugares na roupa que possam pegar e reter metal derretido ou fagulhas não devem ser usados. Botas de cano alto ou perneiras de couro e luvas resistentes ao fogo devem ser usados. As pernas das calças devem ser usadas por fora dos canos altos das botas. Capacetes ou escudos manuais que providenciem proteção para face, pescoço e orelhas devem ser usados, bem como uma cobertura de cabeça que a proteja. As roupas devem ser mantidas livres de graxa e óleo. Materiais combustíveis não devem ser levados nos bolsos. Se qualquer substância combustível for derramada sobre a roupa, esta deve ser trocada por roupa resistente a fogo limpa antes de trabalhar com arco aberto ou fogo. Proteção ocular apropriada deve ser usada todo tempo. Óculos de proteção ou equivalentes devem ser usados para fornecer maior proteção ocular. Luvas isoladas devem ser usadas todo tempo quando em contato com itens quentes ou quando lidando com equipamento elétrico. Para informações mais detalhadas sobre proteção pessoal, as Referências 2, 3, 8, e 11 devem ser consultadas. R5. Prevenção contra fogo Metal derretido, fagulhas, escória e superfícies quentes são produzidas por soldagens, cortes e processos afins. Estes podem causar fogo ou explosões se medidas de precaução não forem tomadas. Explosões ocorreram quando soldagens e cortes foram executados em espaços contendo gases inflamáveis, vapores, líquidos e poeira. Todo material combustível deve ser removido da área de trabalho. Quando possível, mover a área de trabalho para bem longe de materiais combustíveis. Se nenhuma dessas ações é possível, combustíveis devem ser protegidos com uma cobertura de material resistente a fogo. Todos os materiais combustíveis devem ser removidos ou protegidos num raio de 35 pés [11 m] em volta da área de trabalho. Soldagem e corte não devem ser feitos em atmosferas contendo gases perigosamente reativos ou inflamáveis, vapores, líquidos e poeira. Não se deve aplicar calor num recipiente que conteve substância desconhecida ou materiais combustíveis cujo conteúdo, quando aquecido, pode produzir vapores combustíveis ou explosivos. Ventilação adequada deve ser providenciada nas áreas de trabalho para prevenir acúmulo de gases combustíveis, vapores ou poeira. Recipientes devem estar limpos e purgados antes de se aplicar calor. Para informação mais detalhada sobre riscos de fogo decorrentes de operações de soldagem e corte, veja Referências 6, 8, 9, e 11. R6. Radiação Soldagem, corte e operações afins podem produzir energia radiante (radiação) danosa à saúde. Todos devem se familiarizar com os efeitos dessa energia radiante. Energia radiante pode ser ionizante (tal como raios-X) ou não-ionizante (tal como ultravioleta, luz visível ou infravermelho). Radiação pode produzir uma variedade de efeitos tais como queimadura da pele ou dano aos olhos, se ocorrer exposição excessiva. Alguns processos como soldagem por resistência e soldagem de pressão a frio usualmente produzem quantidades negligíveis de energia radiante. No entanto, a maioria das soldagens a arco e processos de corte (exceto arco submerso quando usado apropriadamente), soldagem a laser e soldagem com maçarico, corte ou brasagem podem produzir quantidades de radiação não- ionizante tais que medidas de precaução sejam necessárias. Proteção contra efeitos de radiação possivelmente danosos inclui os seguintes: (1) Arcos de solda não devem ser observados exceto através de placas de filtragem para soldas (ver Referência 2). Cortinas se soldagem transparentes não devem ser tomadas por placas de filtragem para soldas, e sim como proteção de transeuntes contra exposição incidental. (2) Pele exposta deve ser protegida com luvas adequadas e roupas específicas (ver Referência 8). (3) O transeunte casual de operações de soldagem deve ser protegido por telas, cortinas ou distância adequada nos corredores e passagens, etc... (4) Óculos de segurança com proteção lateral ultravioleta mostraram alguma proteção benéfica contra radiação ultravioleta produzida por arcos de solda.
  • 399.
    ANEXO R AWSD1.1/D1.1M:2010 379 Referências Citadas (1) American Conference of Governmental Industry Hygienists (ACGIH). Threshold limit values for chemi- cal substances and physical agents in the workroom en- vironment. Cincinnati, Ohio: American Conference of Governmental Industry Hygienists (ACGIH). (2) American National Standards Institute. Practice for occupational and educational eye and face protection, ANSI Z87.1. New York: American National Standards Institute. (3) American National Standards Institute. Personal Protection-Protective Footwear, ANSI Z41.1. New York: American National Standards Institute. (4) American Welding Society. Fumes and gases in the welding environment, AWS report. Miami, Florida: American Welding Society. (5) American Welding Society. Method for sound level measurement of manual arc welding and cutting processes, AWS F6.1. Miami, Florida. American Welding Society. (6) American Welding Society. Recommended safe practices for the preparation for welding and cutting containers and piping, AWS F4.1. Miami, Florida: American Welding Society. (7) American Welding Society. Safe Practices. (Reprint from Welding Handbook, Volume 1, Ninth Edition) Miami, Florida: American Welding Society. (8) American Welding Society. Safety in welding,cutting, and allied processes. ANSI Z49.1. Miami, Florida: American Welding Society. (9) National Fire Protection Association. Fire prevention in use of cutting and welding processes, NFPA Standard 51B. Quincy, Massachusetts: National Fire Protection Association. (10) National electrical code. NFPA No. 70. Quincy, Massachusetts: National Fire Protection Association. (11) Occupational Safety and Health Administration. Code of Federal Regulations, Title 29 Subtitle B, Chapter XVII, Part 1910; Occupational Safety and Health Standards. Washington, DC: U.S. Government Printing Office.
  • 400.
  • 401.
    AWS D1.1/D1.1M:2010 381 Anexo S(Informativo) Exame UT de Soldas por Teste de Ultrassografia - Técnicas Alternativas Este anexo não é parte do AWS Dl.l/D1.1M:2010, Código de Soldagem Estrutural-Aço, mas é incluído apenas com propósitos informativos. Sl. Geral O propósito deste anexo é descrever técnicas alternativas para teste UT de soldas. As técnicas descritas são métodos comprovados de uso corrente em outras aplicações, mas não detalhadas no código. As técnicas alternativas apresentadas requerem proce- dimentos qualificados, por escrito, qualificações especiais para operador de teste UT, e métodos de calibragem especiais necessários para se obter a requerida precisão em medição de descontinuidade. O uso deste anexo e os processos resultantes desen- volvidos, incluindo os critérios aplicáveis de aceitação, estão sujeitos à aprovação pelo Engenheiro. Este anexo não é obrigatório a não ser que seja especificado nos documentos contratuais. Quando assim especificado, no entanto, todos requerimentos nele contidos (se aplicáveis) devem ser considerados obrigatórios, salvo se especificamente modificados nos documentos contratuais. Requerimentos aplicáveis do código em relação à instrumentação e qualificação do operador, exceto as aqui emendadas, podem ser usadas para suplementar este anexo. No entanto, não é intencional que estas técnicas sejam usadas para suplementar os requisitos existentes na Cláusula 6 do código pois os procedimentos e as técnicas lá especificados são completos e representam uma aproximação diferente para os testes UT de soldas. Parte A Procedimentos Básicos para UT S2. Introdução Os procedimentos básicos em UT, instrumentação e requisitos do operador contidos nesta Parte A são necessários para assegurar exatidão máxima na avaliação de descontinuidade e medição. Os métodos aqui descritos não são novos. Eles têm sido usados por outras indústrias, incluindo a construção naval e de construção de estruturas de plataformas marítimas nos últimos 25 anos. Apesar de não terem sido proibidos, não foram organizados e especificamente disponibilizados para uso nos documentos AWS. Alguns dos métodos incluídos nesta seção também estão incluídos nas API RP 2X do American Petroleum Institute, Recommended Practices for Ultrasonic Examination of Offshore Structural Fabrication and Guidelines for Qualification of Ultrasonic Technicians. Informação adicional e útil pode ser obtida por referência. Para maior controle em medição de descontinuidade, enfatizou-se o processo que será escrito e qualificado; requisitos especiais do técnico em UT; e requisitos de instrumentação e calibragem de UT. A AWS reconhece as limitações e inconsistências inerentes ao exame por UT para caracterização e medição de descontinuidades. A acuidade obtida tem que ser provada pelo técnico em UT usando os procedimentos e equipamentos aplicáveis. Os resultados no procedimento de qualificação devem ser fornecidos ao Engenheiro. A AWS não contesta a acuidade possível pelo uso dos métodos aqui contidos.
  • 402.
    ANEXO S AWSD1.1/D1.1M:2010 382 S3. Procedimentos para UT Todos os UTs deverão ser executados de acordo com os procedimentos escritos que conterão um mínimo das seguintes informações a respeito dos métodos e técnicas de exame dos UTs: (1) Os tipos de configurações das juntas de soldas a ser examinadas (2) Critérios de aceitação dos tipos de juntas de soldas a ser examinadas (critérios adicionais quando os critérios da Cláusula 6, Parte C não são invocados pelo Engenheiro) (3) Tipos de equipamento para UT (fabricante, número do modelo, número de série) (4) Tipo de transdutor, incluindo frequência, tamanho, forma, ângulo e tipo de cunha se forem diferentes de 6.22.6 ou 6.22.7 (5) Preparação da superfície de sondagem e requisitos de acoplamento (6) Tipo de bloco(s) de teste de calibragem com os refletores de referência apropriados (7) Método de calibragem e intervalo de calibragem (8) Método de exame para laminações prévias à avaliação da solda se o método for deferente de 6.26.5 (9) Marcação índice da raiz de soldagem e outros métodos preliminares de marcação de soldagem (10) Padrões de varredura e requisitos de sensibilidade (11) Métodos para determinação de altura, comprimento e nível de amplitude da descontinuidade (12) Métodos de correção de transferência para rugosidade de superfície, cobertura de superfície e curvatura da parte. se aplicável (13) Método de verificação de exatidão do exame completado. Esta verificação será por reteste UT por outros (auditores), outros métodos NDE, espécime de análise macrográfica, goivagem ou outras técnicas visuais a ser aprovadas pelo Engenheiro (14) Requisitos de documentação para exames, incluindo qualquer verificação executada (15) Requisitos de retenção de Documentação. O procedimento escrito será qualificado por teste de soldas-maquete que representam as soldagens de produção a ser examinada. As soldas-maquete serão seccionadas, devidamente examinadas, e documentadas para provar execução satisfatória do procedimento. O procedimento e todos os dados qualificatórios devem ser aprovados por um indivíduo que tenha certificado Nível III em UT por teste em conformidade com ASNT SNT-TC-1A e que tenha posterior qualificação por experiência em exame de tipos específicos de juntas de soldagem a ser examinadas. S4. Operador e Equipamento de UT Complementando os requeridos em 6.14.6, 6.21, e 6.27.2, o operador de UT deve demonstrar habilidade no uso do procedimento escrito, incluindo todas as técnicas especiais requeridas e, quando altura e profundidade de descontinuidade forem requeridas, deverá estabelecer habilidade e precisão na demonstração dessas dimensões. O equipamento de UT deve alcançar o requerido por 6.22 e conforme requerido neste anexo. Equipamento alternativo que utiliza computação, sistemas de imagens, varredura mecanizada e equipamentos de gravação podem ser usados, quando aprovados pelo Engenheiro. Transdutores com frequência até to 6 MHz, com tamanhos até 1/4 pol [6 mm] e de qualquer formato podem ser usados, desde que estejam incluídos no procedimento e propriamente qualificados. S5. Padrão de Referência O refletor padrão deve ser um furo lateral de 1,5 mm de diâmetro ou equivalente. O refletor pode ser colocado em um bloco de calibragem de qualquer formato, maquete de soldagem ou peça de produção real a critério do usuário. Orientação e tolerância para colocação do refletor são mostradas na Figura S.l. Um bloco de calibragem recomendado é mostrado na Figura S.2. Possíveis usos alternativos do refletor são mostrados na Figura S.3. Quando colocado em maquetes de soldagem e secções de ligação soldada de produção, o refletor deve estar em posição tal que seja difícil direcionar feixes de som, assegurando assim detecção de descontinuidades em todas as áreas de interesse. S6. Métodos de Calibragem Os métodos de calibragem aqui descritos são considerados aceitáveis devem ser usados para cumprir estes procedimentos de UT alternativos. O código reconhece que outros métodos de calibragem podem ser preferidos pelo usuário individual. Se forem usados outros métodos, estes devem produzir resultados que se mostrem no mínimo iguais aos aqui recomendados. O refletor padrão descrito em S5 deve ser considerado o refletor padrão para estes e todos os métodos que venham a ser usados. S6.1 Sensibilidade Padrão. Sensibilidade padrão deve consistir da soma do seguinte: (1) Sensibilidade básica. A indicação maximizada do refletor padrão, mais, (2) Correção da Amplitude de Distância. Determinada por indicações de múltiplos refletores padrão a profundidades representando o mínimo, intermediário e máximo a ser examinado, mais, (3) Correção de Transferência. Ajuste ao tipo de material, forma e condições da superfície de varredura tais como descritos abaixo:
  • 403.
    ANEXO S AWSD1.1/D1.1M:2010 383 Para padronização de sensibilidade precisa, deve-se realizar correção de transferência. Isto assegurará que as diferenças em propriedades acústicas, varredura de superfícies formato da peça entre o padrão de calibragem e o bloco de calibragem sejam utilizados quando executar a calibragem de sensibilidade padrão. Valores de correção de transferência devem ser determinados inicialmente antes do exame e quando o tipo do material, forma, espessura e superfície de varredura variem de modo a ser esperada diferença que exceda ± 25% dos valores esperados. Os valores de correção de transferência devem ser determinados como mostrado na Figura S .4. S6.1.1 Sensibilidade de Varredura. Sensibilidade de varredura deve ser a sensibilidade padrão + aproximadamente 6-12 dB ou como requerido para verificar a penetração sonora pelas indicações dos reflexos superficiais. A avaliação de execução deve ser praticada com referência à sensibilidade padrão exceto quando a sensibilidade padrão não é requerida s maior ou menor sensibilidade for mais apropriada para determinação do tamanho máximo de descontinuidade (altura ou largura). S6.2 Onda de Compressão S6.2.1 Profundidade (Varredura Horizontal). Indicações provenientes de reflexões múltiplas obtidas da espessura do padrão de calibragem ou da área medida de uma maquete ou soldagem de produção devem ser usadas como mostrado na Figura S.5. A exatidão da calibragem deve estar entre ±5% da espessura real para exame do metal de base para laminações e ± 2% para determinar tamanho de descontinuidade (altura) e localização. S6.2.2 Calibragem de Sensibilidade (Padrão). A unidade de busca deve ser colocada sobre os refletores padrão num mínimo de 3 profundidades para assegurar cobertura de toda espessura a ser examinada em conformidade com a Figura S.6. Os valores em dB obtidos das indicações maximizadas de cada refletor devem ser anotados. Uma curva de amplitude de distância (DAC) deve ser estabelecida ou métodos eletrônicos usados para saber a posição das indicações de demonstração que representam o refletor padrão nas várias espessuras a serem examinadas. S6.3 Onda de Cisalhamento S6.3.1 Profundidade (Varredura Horizontal). Indicações dos refletores padrão selecionados devem ser usados para cobrir profundidade máxima a serem usadas durante exame conforme Figura S.7. A exatidão estar entre ± 1% para facilitar a medição de altura de descontinuidade mais acurada. A técnica de retardo deve ser usada para descontinuidades com profundidade maior do que aproximadamente 1,5 pol para maximizar a precisão da leitura de profundidade de descontinuidade (e altura de descontinuidade) mais precisa. S6.3.2 Sensibilidade (Padrão). Refletores padrão localizados em profundidades mínima, intermediária e máxima sob a superfície a ser usada para exame devem ser usados em conformidade com a Figura S.7. As indicações devem ser maximizadas e a DAC estabelecida ou métodos eletrônicos usados para mostrar indicações que representem o reflector padrão nas várias profundidades selecionadas. A DAC deve ser ajustada, baseada nos resultados da correção de transferência. Os métodos de calibragem de sensibilidade aqui descritos não são essenciais quando o tamanho real da descontinuidade (altura e comprimento) é requerida. Neste caso, somente é necessário manter sensibilidade suficiente através da parte sendo examinada de modo a que todas as descontinuidades sejam encontradas e apropriadamente avaliadas. S7. Varredura A varredura será como descrita em 6.32 e 6.27.7. Complementando, para aplicações não cobertas pelas referências do código acima, os métodos da Figura S.8 devem ser usados como aplicáveis. S8. Métodos de Caracterização de Descontinuidade de Soldagem S8.1 Descontinuidades devem ser caracterizadas como a seguir: (1) Esféricas (poros individuais e porosidade largamente espaçada, escória não alongada) (2) Cilíndricas (escória alongada, poros de porosidade alinhada, esferas ocas) (3) Planas (fusão incompleta, penetração de junta inadequada, trincas) S8.2 Os seguintes métodos devem ser usados para determinar as características básicas das descontinuidades: S8.2.1 Esféricas. O som é refletido igualmente em todas as direções. As indicações permanecem basicamente inalteradas enquanto a unidade de busca é movida ao redor da descontinuidade esférica como mostrado na Figura S .9. S8.2.2 Cilíndricas. O som se reflete igualmente em uma direção mas muda em outras direções. As indicações permanecem basicamente inalteradas enquanto a unidade de busca é movida em uma direção mas é drasticamente mudada quando movida em outras direções como mostrado na Figura S.10. S8.2.3 Planas. O som se reflete no seu máximo apenas num único ângulo de incidência com um plano. As indicações mudam com qualquer movimento angular da unidade de busca como mostrado na Figura S .11. Indicações de trincas tipicamente têm picos múltiplos como resultado das muitas facetas usualmente presentes. S9. Métodos de Medição e Localização de Descontinui- dades de Soldagem S9.1 Calibragem. A calibragem deve ser baseada na profundidade da superfície em conformidade com S6. As descontinuidades podem ser dimensionadas com o mais alto nível de precisão usando os métodos descritos nesta secção, no entanto, o usuário deve se lembrar que
  • 404.
    ANEXO S AWSD1.1/D1.1M:2010 384 UT, como qualquer método NDT, fornece dimensões de descontinuidade relativas. A orientação e formato da descontinuidade, unida com as limitações do método NDT podem resultar em variações significativas entre as dimensões relativas e reais. S9.2 Altura. A altura da descontinuidade (dimensão profundidade) deve ser determinada usando os seguintes métodos: S9.2.1 A altura de indicação deve ser maximizada movendo-se a unidade de busca para frente e para trás da descontinuidade conforme A da Figura S.12. A altura de indicação deve ser ajustada num valor conhecido (isto é: 80% da altura de tela plena [FSH]). S9.2.2 A unidade de busca deve ser movida em direção à descontinuidade até que a indicação de altura comece a cair rápida e continuamente em direção à linha base. A posição do bordo de ataque (esquerda) da indicação de posicionamento na posição B na Figura S.12 em relação à linha base horizontal da escala do mostrador deve ser anotada. Uma escala com divisões de 0,10 polegadas [2,5 mm] deve ser usada. S9.2.3 A unidade de busca deve ser afastada da descontinuidade até que a altura de indicação comece a cair rápida e continuadamente em direção à linha base. A posição do bordo de ataque da indicação na posição C na Figura S.12 em relação à linha base horizontal da escala do mostrador deve ser anotada. S9.2.4 A diferença matemática entre B e C deve ser obtida para determinar a dimensão altura da descontinuidade. S9.3 Comprimento. O comprimento da descontinuidade deve ser determinado usando os seguintes métodos: S9.3.1 A orientação da descontinuidade deve estar alinhada com a marca indicativa máxima da unidade de busca. Esta marcação deve ser executada cuidadosamente usando um método de marcação de linha fina. S9.3.2 A unidade de busca deve ser movida para uma ponta da descontinuidade enquanto se mantém parte da indicação visível no mostrador todo tempo até que a indicação caia completamente para a linha base. A unidade de busca deve ser movida para trás em direção à descontinuidade até que a indicação de altura alcance 50% da altura máxima originalmente obtida perto do fim conforme B da Figura S.13. A posição deve ser marcada no fim da descontinuidade na superfície de varredura ou soldada alinhada com a marca de indicação máxima da unidade de busca. Esta marcação deve ser executada cuidadosamente usando um método de marcação com linha fina. S9.3.3 Os passos acima devem ser repetidos para se localizar a ponta oposta da descontinuidade conforme C da Figura S.13 e deve ser anotada cuidadosamente. S9.3.4 O comprimento da descontinuidade deve ser obtido medindo a distância entre as duas marcas conforme Figura S.13. S9.4 Posicionamento - Profundidade Abaixo da Superfície de Varredura. A localização da profundidade de descontinuidades pode ser lida diretamente na escala da linha base horizontal. A posição da profundidade das descontinuidades pode ser lida diretamente na escala da linha base horizontal do mostrador quando se usam os métodos acima descritos para determinação da altura de descontinuidades. A posição reportada deve ser o ponto mais profundo determinado, salvo se especificado diferentemente, para assistir nas operações de remoção. S9.5 Posicionamento – Juntamente com a Profundidade da Solda. O posicionamento da descontinuidade a partir de um ponto de referência conhecido pode ser determinado medindo-se a distancia do ponto de referência até as marcas de comprimento das descontinuidades estabelecidas para o comprimento. As pedidas devem ser feitas a partir do início da descontinuidade salvo se especificado diferentemente. Sl0. Problemas com Descontinui- dades Usuários de UT para exames de soldas têm que estar cientes dos problemas de interpretação potenciais seguintes associados às características das descontinuidades de solda: Sl0 l Tipo de Descontinuidade. Som ultrassônico tem sensibilidade variável para descontinuidades de solda dependendo do seu tipo. A sensibilidade relativa é mostrada nas tabelas seguintes e deve ser considerada durante a avaliação de descontinuidades. O técnico em UT pode mudar a sensibilidade para todos tipos de descontinuidades mudando a regulagem do instrumento de UT, a frequência da unidade de busca, e métodos de medição e sondagem, incluindo padrões de varredura e acoplamento. Tipo de Descontinuidade Sensibilidade Relativa UT 1) Fusão incompleta 2) Trincas (superfície) 3) Penetração inadequada 4) Trincas (abaixo da superfície) 5) Escória (contínua) 6) Escória (dispersa) 7) Porosidade (encanamento) 8) Porosidade (agrupada) 9) Porosidade (dispersa) Máxima - - - - - - - Mínima S10.2 Classificação Geral das Descontinuidades. Pode ser comparada como a seguir: Classificação Geral das Descontinuidades Sensibilidade Relativa UT (a) Plana (b) Linear (c) Esférica Máxima - Mínima NOTA: A tabulação acima assume a melhor orientação para detecção e avaliação. S10.3 Tamanho. O tamanho da descontinuidade afeta a precisão da interpretação. Descontinuidades do tipo planas com grande altura ou altura muito pequena podem fornecer uma interpretação menos precisa do que as de altura mediana. Poros pequenos e esféricos são difíceis de dimensionar por causa das mudanças rápidas de superfícies de reflexão que ocorrem quando o facho de som é movido pela peça.
  • 405.
    ANEXO S AWSD1.1/D1.1M:2010 385 S10.4 Orientação. A orientação da descontinuidade afeta a sensibilidade do UT pois a maior sensibilidade é a que reflete o som mais diretamente de volta à unidade de busca. Sensibilidades relativas a respeito dos tipos e orientação das descontinuidades são opostas ao que foi mostrado nas tabelas anteriores. O técnico em UT pode aumentar a sensibilidade conforme a orientação selecionando um ângulo do facho de som que seja mais normal ao plano da descontinuidade e à superfície reflexiva. A seleção de ângulos que igualem o ângulo do chanfro aumentá a sensibilidade para descontinuidades do tipo planas e lineares que devem ocorrer mais frequentemente ao longo deste plano. S10.5 Localização da Descontinuidade. Localização na solda e na base metálica adjacente pode influenciar a capacidade de detecção e uma avaliação apropriada. As descontinuidades próximas da superfície são mais facilmente detectadas mas podem ser menos facilmente mensuradas. S10.6 Tipo de Junta de Solda e Projeto de Chanfro. O tipo de junta de solda e o projeto de chanfro são fatores importantes que afetam as capacidades dos UTs de detectar descontinuidades. São os seguintes os fatores que podem causar problemas e devem ser considerados pelos seus possíveis efeitos: (1) Reforços (2) Ângulos de bisel (3) Ângulos de interceptação dos membros da junção (4) Soldas PJP (5) Soldas Tee (6) Membros tubulares (7) Rugosidade e contorno da superfície de solda Sll. Níveis de Amplitude de Descontinuidade e Níveis de Descontinuidade das Classes de Solda As seguintes categorias de nível de amplitude de descontinuidade devem ser aplicadas na avaliação de aceitabilidade: Nível Descrição 1 Igual ou acima do SSL (ver Figura S.14) 2 Entre o SSL e o DRL (ver Figura S.14) 3 Igual ou menor que o DRL (ver Figura S.14) SSL = Nível de Sensibilidade Padrão—pela Cláusula 6. DRL = Nível de Desconsideração = 6 dB menos do que o SSL. Classes de Solda. As seguintes classes de solda devem ser usadas na avaliação da aceitabilidade da descontinuidade: Classe de Solda Descrição S Estruturas estaticamente carregadas D Estruturas ciclicamente carregadas R Estruturas tubulares (substituto para RT) X Conexões tubulares em T, Y, K S12. Critérios de Aceitação - Rejeição S12.1 Amplitude. Os critérios de aceitação-rejeição da tabela S.1 devem se aplicar quando amplitude e comprimento são os maiores fatores e a altura máxima da descontinuidade não for conhecida ou especificada. S12.2 Tamanho. Quando o tamanho máximo permissível de descontinuidade (altura e comprimento) é conhecido e é especificado pelo Engenheiro, o tamanho real (ambos altura e comprimento) devem ser determinados e reportados. Avaliação final e aceitação/rejeição devem ser do Engenheiro. S13. Preparação e Disposição de Relatórios Um relatório deve ser feito de modo à claramente identificar o trabalho e a área de exame pelo operador de UT na época do exame. O relatório, no mínimo, deve conter a informação mostrada no formulário de relatório modelo, Figura S.15. Caracterização de descontinuidade e subseqüente categorização e relatório de UT devem se limitar ao plano, esférico e cilíndrico apenas. Quando especificado, descontinuidades aproximando-se do tamanho aceitável, particularmente aqueles com alguma dúvida na sua avaliação, devem ser reportados. Antes de uma solda submetida a UT pelo Empreiteiro para o Proprietário ser aceita, todos formulários de relatórios pertencentes à solda, incluindo qualquer um que mostre aceitação anterior ao reparo, deve ser submetida ao Proprietário ao final do trabalho. A obrigação do Empreiteiro de reter relatórios de UT deve cessar (1) quando da entrega de um conjunto completo ao Proprietário, ou (2) após um ano do término do trabalho do Empreiteiro, desde que o Proprietário seja notificado por escrito.
  • 406.
    ANEXO S AWSD1.1/D1.1M:2010 386 Tabela S.1 Critério de Rejeição-Aceitação (ver S12.1) Nível Máximo Obtido de Amplitude da Descontinuidade Comprimentos Máximos de Descontinuidade por Classes de Solda Estatisticamente Carregada Ciclicamente Carregada Classe R Tubular Classe X Tubular Nível 1 – Igual ou maior que SSL (ver S6.1 e Figura S.14) > 5 dB e acima SSL= nenhum permitido 0 até 5 dB e acima SSL = 3/4 in [20 mm] > 5 dB e acima SSL = nenhum permitido 0 até 5 dB e acima SSL = 1/2 in [12 mm] Ver Figura 6.4 Ver Figura 6.5 (Utiliza Alura) Nível 2 – Entre SSL e DRL (ver Figura S.14) 2 in [50 mm] Meio de 1/2 da Solda = 2 in [50 mm] Topo & Fundo 1/4 da solda = 3/4 in [20 mm] Ver Figura 6.4 Ver Figure 6.5 (Utiliza Alura) Nível 3 – Igual ou menor que DRL (ver Figura S.14) Desconsiderar (quando espécificado pelo Engenheiro, registrar para informação)
  • 407.
    ANEXO S AWSD1.1/D1.1M:2010 387 Notas: 1. d1 = d2 ± 0.5 mm d3 = d4 ± 0.5 mm SP1 = SP2 ± 1 mm SP3 = SP4 ± 1 mm 2. As tolerâncias acima devem ser consideradas apropriadas. O refletor deve, em todos os casos, ser colocado de forma a permitir a maximização da reflexão e da indicação UT (este é um comentário geral para todas as notas no Anexo S). Figura S.1 – Refletor de Referência Padrão (ver S5) Observação: Deveria ser requerido que dimensões acomodem unidades de busca para a distância de caminho de som requerida. Figura S.2 – Bloco de Calibragem Recomendado (ver S5)
  • 408.
    ANEXO S AWSD1.1/D1.1M:2010 388 Figura S.3 – Refletor Típico Padrão (Localizado em Maquetes de Solda e Soldas de Produção) (ver S5)
  • 409.
    ANEXO S AWSD1.1/D1.1M:2010 389 Procedimento: 1. Coloque duas unidades de busca de feixe de ângulo similares no bloco de calibragem ou maquete para serem usadas na posição mostrada acima. 2. Usando métodos de transmissão, maximize a indicação obtida e obtenha um valor dB da indicação. 3. Transfira as mesmas duas unidades de busca à parte a ser examinada, oriente na mesma direção na qual o escaneamento será realizado e obtenha um valor dB de indicações dos últimos três locais como explicado acima. 4. A diferença em dB entre o bloco de calibragem ou maquete e a média daquele obtido da parte a ser examinada deveria ser registrada e usada para ajustar a sensibilidade padrão. . Figura S.4 – Correção de Transferência (ver S6.1) Figura S.5—Profundidade de Onda de Compressão (Calibragem de Varredura Horizontal) (ver S6.2.1)
  • 410.
    ANEXO S AWSD1.1/D1.1M:2010 390 Figura S.6—Calibragem de Sensibilidade de Onda de Compressão (ver S6.2.2) Figura S.7—Calibragem de Sensibilidade e Distância de Onda de Cisalhamento (ver S6.3.1)
  • 411.
    ANEXO S AWSD1.1/D1.1M:2010 391 Notas: 1. Indique o escaneamento, ou a unidade de busca deveria ser a uma distância fixa da solda enquanto o escaneamento é realizado na solda. 2. Escaneamento de seção transversal é mostrado. É assumido que escaneamento também sera realizado completamente em todo o comprimento da solda com um mínimo de 25% de sobreposição para assegurar 100% de cobertura. Todas as posições de escaneamento mostradas podem não ser requeridas para cobertura total. Posições opcionais são dadas no caso de inacess bilidade impeça o uso de algumas posições. Figura S.8 - Métodos de Escaneamento (ver S7)
  • 412.
    ANEXO S AWSD1.1/D1.1M:2010 392 Figura S.9—Características de Descontinuidade Esférica (ver S8.2.1) Figura S.10 – Características de Descontinuidade Cilíndrica (ver S8.2.2)
  • 413.
    ANEXO S AWSD1.1/D1.1M:2010 393 Figura S.11 - Características de Descontinuidade Planar (ver S8.2.3) Figura S.12 – Dimensão da Altura da Descontinuidade (ver S9.2)
  • 415.
    ANEXO S AWSD1.1/D1.1M:2010 395 Página______ de _______ Projeto____________________________________________________________ Relaório No _________ I.D. da Solda _______________________ Espessura ______________________ Classe _____________ Procedimento UT No. __________________________________ Técnica _____________________________ Instrumento UT _____________________________________________________________________________ Unidade de Busca: No. ___________ Ângulo____________ Freq. _______________ Tamanho_________ RESULT ADO (identificar e descrever cada descontinuidade) No. Localização de Nivel Amplitude Comprimento Altura Comentários Esboço (identificar cada descontinuidade listada acima) NDT Tech. ______________________________ Empreiteiro________________________________ Data do Exame __________________________ Aprovado _________________________________ Data de Aprovação__________________________ Figura S.15 – Relatório de UT (Procedimento Alternativo) (ver S13)
  • 416.
  • 417.
    AWS D1.1/D1.1M:2010 397 Anexo T(Informativo) Parâmetro Oval Alfa Esse anexo não é parte de D1.1/D1.1 M:2010, Código de Soldagem Estrutural-Aço, da AWS, mas está incluído apenas para propósito de informação. A Figura T.1 fornece uma fórmula e define os termos usados para compor um valor da corda parâmetro oval alfa α quando projetando juntas tubulares múltipla- nares. Os valores de alfa obtidos são compatíveis com projeto de resistência estática (Tabela 2.10) e fadiga (Tabela 2.7, Nota e) usando o formato puncionamentopuncionamento. Alfa é avaliado separadamente para cada ramificação para a qual puncionamentopuncionamento é verificado (a "cinta de referência"), e para cada caso de carga, com soma sendo conduzida para todas as cintas presentes no nó, cada tempo alfa é avaliado. Na soma, o termo cosseno expressa a influência de cintas como uma função de posição ao redor da circunferência, e o termo de declínio exponencial expressa a diminuição de influência das cintas conforme a distância L1 aumenta; esses termos são ambos unidade para a cinta de referência que aparece novamente no denominador. Em quadros complexos de espaço, o cálculo repetitivo pode ser incorporado no pós-processador de projeto de junta para a análise de computador de projeto. Para cálculos manuais, o projetista pode preferir as formas mais simples de alfa dadas na Tabela 2.10. No entanto, esses não cobrem os casos multiplanares em que valores mais altos de alfa podem se aplicar (por exemplo, 3.8 para uma junta transversal em estilo de cubo com quatro ramificações), e requerem uma classificação um tanto arbitrária de tipos de junta. Para juntas cujo padrão de carga cai entre os casos padrão (por exemplo, parte da carga é carregada como uma junta em K- e parte como uma junta em T-), valores interpolados de alfa deveriam ser determinados. Alfa computado tomaria conta disso automaticamente.
  • 418.
    AWS D1.1/D1.1M:2010 398 Figura T.1– Definição de Termos para Alfa Computado Página intencionalmente em branco
  • 419.
    AWS D1.1/D1.1M:2010 399 Anexo U(Informativo) Lista de Documentos de Referência Esse anexo não é parte de Dl.l/D1.1M:2010, Código Soldagem Estrutural - Aço, mas foi incluído apenas para propósitos informativos. 1. AWS D1.3/D1.3M:2008, Structural Welding Code- Sheet Steel. 2. AWS A3.0, Standard Welding Terms and Definitions, Including Terms for Adhesive Bonding, Brazing, Soldering, Thermal Cutting, and Thermal Spraying. 3. AWS A2.4, Symbols for Welding, Brazing, and Non-destructive Examination. 4. ANSI Z49.1, Safety in Welding, Cutting, and Allied Processes. 5. ASTM A 6, Standard Specification for General Requirements for Rolled Structural Steel Bars, Plates, Shapes, and Sheet Piling. 6. AISC Load and Resistance Factor Design Specification for Structural Steel in Buildings. 7. ASTM A 673, Specification for Sampling Procedure for Impact Testing of Structural Steel. 8. ASTM E 92, Test Method for Vickers Hardness of Metallic Materials. 9. ASTM E 140, Hardness Conversion Tables for Metals. 10. AWS Dl.O, Code for Welding in Building Construction. 11. AWS D2.0, Specification for Welded Highway and Railway Bridges. 12. ASTM A 370, Mechanical Testing of Steel Products. 13. AWS A5.25/A5.25M-97 (R2009), Specification for Carbon and Low-Alloy Steel Electrodes and Fluxes for Electroslag Welding. 14. AWS A5.26/A5.26M-97 (R2009), Specification for Carbon and Low-Alloy Steel Electrodes for Electro- gas Welding. 15. AWS A5.1/A5.1M:2004, Specification for Carbon Steel Electrodes for Shielded Metal Arc Welding. 16. AWS A5.5/A5.5M:2006, Specification for Low- Alloy Steel Electrodes for Shielded Metal Arc Welding. 17. AWS A5.17/A5.17M-97 (R2007), Specification for Carbon Steel Electrodes and Fluxes for Submerged Arc Welding. 18. AWS A5.23/A5.23M:2007, Specification for Low-Alloy Steel Electrodes and Fluxes for Submerged Arc Welding. 19. AWS A5.01M/A5.01:2008 (ISO 14344:2002 MOD), Procurement Guidelines for Consumables- Welding and Allied Processes- Flux and Gas Shielded Electrical Welding Processes. 20. AWS A5.18/A5.18M:2005, Specification for Car- bon Steel Electrodes and Rods for Gas Shielded Arc Welding. 21. AWS A5.20/A5.20M:2005, Specification for Carbon Steel Electrodes for Flux Cored Arc Welding. 22. AWS A5.28/A5.28M:2005, Specification for Low-Alloy Steel Filler Metals for Gas Shielded Arc Welding.
  • 420.
    AWS D1.1/D1.1M:2010 400 23. AWSA5.29/A5.29M:2010, Specification for Low- Alloy Steel Electrodes for Flux Cored Arc Welding. 24. AWS A5.12M/A5.12:2009 (ISO 6848:2004 MOD), Specification for Tungsten and Oxide Dispersed Tungsten Electrodes for Arc Welding and Cutting. 25. AWS A5.30/A5.30M:2007, Specification for Consumables Inserts. 26. AWS A5.32/A5.32M-97 (R2007), Specification for Welding Shielding Gases 27. ASTM A 435, Specification for Straight Beam Ultrasonic Examination of Steel Plates. 28. ASME B46.1, Surface Texture (Surface Roughness, Waviness, and Lay). 29. AWS C4.1-77 (R 2010), Criteria for Describing Oxygen-Cut Surfaces and Oxygen Cutting Surface Roughness Gauge. 30. AWS QC1:2007, Standard for AWS Certification of Welding Inspectors. 31. Canadian Standard Association (CSA) Standard W178.2, Certification of Welding Inspectors. 32. AWS B1.10M/B1.10:2009, Guide for Nondestructive Examination of Welds. 33. ASTM E 709, Guide for Magnetic Particle Inspection. 34. ASTM E 165, Test Method for liquid Penetrant Examination. 35. American Society for Nondestructive Testing, Recommended Practice No. SNT-TC-1A. 36. ASTM E 94, Standard Recommended Practice for Radiographic Testing. 37. ASTM E 142, Standard Method for Controlling Quality of Radiographic Testing. 38. ASTM E 747, Controlling Quality of Radiographic Testing Using Wired Penetrameters. 39. ASTM E 1032, Radiographic Examination of Weldments. 40. ASME Boiler and Pressure Vessel Code, Section V, Article 2. 41. The International Institute of Welding (IIW) Ultrasonic Reference Block. 42. ASTM A 108, Specification for Steel Bars, Carbon, Cold-Finished, Standard Quality Grades. 43. AWS C5.4-93, Recommended Practices for Stud Welding. 44. AWS Welding Handbook, Volume 1, 9th Edition, Chapter 13. 45. ASTM E 23, Standard Methods for Notched Bar Impact Testing of Metallic Materials, for Type A Charpy (Simple Beam) Impact Specimen. 46. All ASTM base metals listed in Table 3.1 and Table 4.9 are found in ASTM 01.04, Steel-Structural, Re-inforcing, Pressure Vessel Railway, ASTM 01.03, Steel-Plate, Sheet, Strip, Wire; Stainless Steel Bar, and ASTM 01.01, Steel-Piping, Tubing, Fittings. 47. API 2W, Specification for Steel Plates for Offshore Structures, Produced by Thermo-Mechanical Control Processing. 48. API 2Y, Specification for Steel Plates, Quenched-and-Tempered, for Offshore Structures. 49. AWS D1.6/D1.6M:2007, Structural Welding Code- Stainless Steel.
  • 421.
    AWS D1.1/D1.1M:2010 401 Anexo V(Informativo) Propriedades de Resistência de Metal de Adição Esse anexo não é parte de D1.1/D1.1 M:2010, Código de Soldagem Estrutural-Aço, da AWS, mas está incluído apenas para propósito de informação. Os dados contidos nesse anexo são copiados da especificação A5 apropriada. Valores mostrados são para apenas para propósito de referência e outras variáveis de processo podem ter de ser controladas para alcançar a Resistência à Tração Nominal e Limite de escoamento Nominal. (Ver A5, Especificação de Metal de Adição, da AWS, aplicável no caso, para uma descrição mais específica.) AWS A5.1/A5.1M, Especificação para Eletrodos de Aço de Carbono para Soldagem a Arco com Eletrodo Revestido a,b Classificação AWS Resistência à Tração Limite de escoamento a Compensação de 0,2% Alongamento Percentagem em 4x Comprimento de Diâmetro A5 1 A5 1M A5 1 (ksi) A5 1M (MPa) A5 1 (ksi) A5 1M (MPa) E6010 E4310 60 430 48 330 22 E6011 E4311 60 430 48 330 22 E6012 E4312 60 430 48 330 17 E6013 E4313 60 430 48 330 17 E6018 E4318 60 430 48 330 22 E6019 E4319 60 430 48 330 22 E6020 E4320 60 430 48 330 22 E6022 E4322 60 430 Não Especificado Não Especificado E6027 E4327 60 430 48 330 22 E7014 E4914 70 490 58 400 17 E7015 E4915 70 490 58 400 22 E7016 E4916 70 490 58 400 22 E7018 E4918 70 490 58 400 22 E7024 E4924 70 490 58 400 17c E7027 E4927 70 490 58 400 22 E7028 E4928 70 490 58 400 22 E7048 E4948 70 490 58 400 22 E7018M E4918M Nota d Nota d 53-72e 370-500e 24 a Requisitos estão na condição de soldagem em bruto com o envelhecimento. b Valores únicos são mínimos. c Metal de solda de eletrodos identificados como E7024-1 [E4924-1] devem ter alongamento de no mínimo 22%. d Resistência à tração desse metal de solda é 70 ksi [490 MPa] nominal. e Para eletrodos de 3/32 in [2,4 mm], o limite de escoamento máximo é 77 ksi [530 MPa].
  • 422.
    AWS D1.1/D1.1M:2010 ANEXOV 402 AWS A5.5/A5.5M, Especificação para Eletrodos de Aço de Carbono para Soldagem a Arco com Eletrodo Revestidoa Classificação AWS Resistência à Tração Limite de escoamento a Compensação de 0,2% Alongamento Condição Pós-Soldac A5.5 A5.5M ksi MPa ksi MPa Percentual E7010-Pl E4910-P1 70 490 60 415 22 AW E7010-Al E4910-Al 70 490 57 390 22 PWHT. E7010-G E4910-G 70 490 57 390 22 AW ou PWHT E7011-Al E4911-Al 70 490 57 390 22 PWHT E7011-G E4911-G 70 490 57 390 22 AW ou PWHT E7015-X E4915-X 70 490 57 390 22 PWHT E7015-B2L E4915-B2L 75 520 57 390 19 PWHT E7015-G E4915-G 70 490 57 390 22 AW ou PWHT E7016-X E4916-X 70 490 57 390 22 PWHT E7016-B2L E4916-B2L 75 520 57 390 19 PWHT E7016-G E4916-G 70 490 57 390 22 AW ou PWHT E7018-X E4918-X 70 490 57 390 22 PWHT E7018-B2L E4918-B2L 75 520 57 390 19 PWHT E7018-C3L E4918-C3L 70 490 57 390 22 AW E7018-W1 E4918-W1 70 490 60 415 22 AW E7018-G E4918-G 70 490 57 390 22 AW ou PWHT E7020-Al E4920-Al 70 490 57 390 22 PWHT E7020-G E4920-G 70 490 57 390 22 AW ou PWHT E7027-Al E4927-Al 70 490 57 390 22 PWHT E7027-G E4927-G 70 490 57 390 22 AW ou PWHT E8010-P1 E5510-P1 80 550 67 460 19 AW E8010-G E5510-G 80 550 67 460 19 AW ou PWHT E8011-G E5511-G 80 550 67 460 19 AW ou PWHT E8013-G E5513-G 80 550 67 460 16 AW ou PWHT E8015-X E5515-X 80 550 67 460 19 PWHT E8015-B3L E5515-B3L 80 550 67 460 17 PWHT E8015-G E5515-G 80 550 67 460 19 AW ou PWHT E8016-X E5516-X 80 550 67 460 19 PWHT E8016-C3 E5516-C3 80 550 68 a 80d 470 a 550d 24 AW E8016-C4 E5516-C4 80 550 67 460 19 AW E8016-G E5516-G 80 550 67 460 19 AW ou PWHT E8018-X E5518-X 80 550 67 460 19 PWHT E8018-B3L E5518-B3L 80 550 67 460 17 PWHT E8018-C3 E5518-C3 80 550 68 a 80d 470 a 550d 24 AW E8018-C4 E5518-C4 80 550 67 460 19 AW E8018- NM1 E5518- NM1 80 550 67 460 19 AW E8018-P2 E5518-P2 80 550 67 460 19 AW E8018-W2 E5518-W2 80 550 67 460 19 AW E8018-G E5518-G 80 550 67 460 19 AW ou PWHT E8045-P2 E5545-P2 80 550 67 460 19 AW E9010-P1 E6210-P1 90 620 77 530 17 AW
  • 423.
    AWS D1.1/D1.1M:2010 ANEXOV 403 E9010-G E6210-G 90 620 77 530 17 AW ou PWHT E9011-G E6211-G 90 620 77 530 17 AW ou PWHT (Continua) AWS A5.5/A5.5M, Especificação para Eletrodos de Aço de Carbono para Soldagem a Arco com Eletrodo Revestidoa Classificação AWS Resistência à Tração Limite de escoamento a Compensação de 0,2% Alongamento Condição Pós-Soldac A5.5 A5.5M ksi MPa ksi MPa Percentual E9013-G E6213-G 90 620 77 530 14 AW ou PWHT E9015-X E6215-X 90 620 77 530 17 PWHT E9015-G E6215-G 90 620 77 530 17 AW ou PWHT E9016-X E6216-X 90 620 77 530 17 PWHT E9016-G E6216-G 90 620 77 530 17 AW ou PWHT E9018M E6218M 90 620 78 a 90d 540 a 620d 24 AW E9018-P2 E6218-P2 90 620 77 530 17 AW E9018-X E6218-X 90 620 77 530 17 PWHT E9018-G E6218-G 90 620 77 530 17 AW ou PWHT E9045-P2 E6245-P2 90 620 77 530 17 AW E10010-G E6910-G 100 690 87 600 16 AW ou PWHT E10011-G E6911-G 100 690 87 600 16 AW ou PWHT E10013-G E6913-G 100 690 87 600 16 AW ou PWHT E10015-X E6915-X 100 690 87 600 16 PWHT E10015-G E6915-G 100 690 87 600 16 AW ou PWHT E10016-X E6916-X 100 690 87 600 16 PWHT E10016-G E6916-G 100 690 87 600 16 AW ou PWHT E10018M E6918M 100 690 88 a 100d 610 a 690d 20 AW E10018-X E6918-X 100 690 87 600 16 PWHT E10018-G E6918-G 100 690 87 600 16 AW ou PWHT E10045-P2 E6945-P2 100 690 87 600 16 AW E11010-G E7610-G 110 760 97 670 15 AW ou PWHT E11011-G E7611-G 110 760 97 670 15 AW ou PWHT E11013-G E7613-G 110 760 97 670 13 AW ou PWHT E11015-G E7615-G 110 760 97 670 15 AW ou PWHT E11016-G E7616-G 110 760 97 670 15 AW ou PWHT E11018-G E7618-G 110 760 97 670 15 AW ou PWHT E11018M E7618M 110 760 98 a 110d 680 a 760d 20 AW E12010-G E8310-G 120 830 107 740 14 AW ou PWHT E12011-G E8311-G 120 830 107 740 14 AW ou PWHT E12013-G E8313-G 120 830 107 740 11 AW ou PWHT E12015-G E8315-G 120 830 107 740 14 AW ou PWHT E12016-G E8316-G 120 830 107 740 14 AW ou PWHT E12018-G E8318-G 120 830 107 740 14 AW ou PWHT E12018M E8318M 120 830 108 a 120d 745 a 830d 18 AW E12018M1 E8318M1 120 830 108 a 120d 745 a 830d 18 AW a Valores únicos são mínimos, exceto quando especificado de outra forma. b A letra sufixo “X” como usada nessa tabela representa os sufixos (A , B , B2, etc.) que são testados apenas na condição PWHT. c “AW” significa soldagem bruta, que pode ou não ser envelhecida, segundo opção do fabricante. “PWHT” significa tratado com aquecimento pós-solda. d Para eletrodos de 3/32 in [2,5 mm], o valor mais alto para limite de escoamento pode ser 5 ksi [35 MPa] mais alto que o valor indicado.
  • 424.
    AWS D1.1/D1.1M:2010 ANEXOV 404 AWS A5.1/A5.1M, Especificação para Eletrodos e Fluxos de Aço de Carbono para Soldagem a Arco Submerso (Continua) Classificação Eletrodo-Fluxoa Resistência à Tração psi [MPa] Limite de escoamentob psi [MPa] Alongamentob % A5.17 A5.17M F6XX-EXXX F43XX-EXXX 60 000–80 000 [430–560] 48 000 [330] 22 F7XX-EXXX F48XX-EXXX 70 000-95 000 [480-660] 58 000 [400] 22 a A letra “S” irá aparecer depois de “F” como parte da designação de classificação quando o fluxo sendo classificado é uma escória prensada ou uma mistura de escória prensada com fluxo sem uso (virgem). A letra "C" irá aparecer após "E" como parte de uma designação de classificação quando o eletrodo sendo classificado é um eletrodo compósito. A letra "X" usada em vários lugares nessa tabela representa, respectivamente, a condição de tratamento de aquecimento, a tenacidade do metal de solda e a classificação do eletrodo. b Requisitos mínimos. Limite de escoamento de compensação de 0,2% e alongamento em 2 in [51 mm] de comprimento medidor. AWS A5.18/A5.18M, Especificação para Eletrodos e Varas de Aço de Carbono Pra Soldagem a Arco com Gás de Proteção Classificação AWSa Resistência à Tração (mínima) Limite de escoamentob (mínimo) Alongamentob % (mínimo) A5.18 A5.18M Gás de Proteção psi MPa psi MPa ER70S-2 ER70S-3 ER70S-4 ER70S-6 ER70S-7 ER48S-2 ER48S-3 ER48S-4 ER48S-6 ER48S-7 70 000 480 58 000 400 22 ER70S-G ER48S-G d 70 000 480 58 000 400 22 E70C-3X E70C-6X E48C-3X E48C-6X 75–80% Ar/equilíbrio CO2 ou CO2 70 000 480 58 000 400 22 E70C-G(X) E48C-G(X) d 70 000 480 58 000 400 22 E70C-GS(X) E48C-GS(X) d 70 000 480 Não Especificado Não Especificado a O X final mostrado na classificação representa um “C” ou “M” que corresponde ao gás protetor com o qual o eletrodo é classificado. O uso de “C” designa % de proteção de CO2 (AWS A5.32 Classe SG-C); “M” designa 75–80% Ar/equilíbrio de CO2 (AWS A5.32 Classe SG-AC-Y, em que Y é de 20 a 25). Para E70C-G [E48C-G] e E70C-GS [E48C-GS , O “C” ou “M” final pode ser omitido. b Limite de escoamento de compensação de 0,2% e alongamento em 2 in [50 mm] de comprimento medidor. c CO2 = gás de proteção de dióxido de carbono (AWS A5.32 Classe SG-C). O uso de CO2 para propósitos de classificação não é para ser interpretado para impedir o uso de misturas de gás de proteção Ar/CO2 (AWS A5.32 Classe SG-AC-Y) ou Ar/O2 (AWS A5.32 Classe SG-AO- X). Um metal de adição testado com misturas de gases, tais como Ar/O2, ou Ar/CO2, pode resultar em metal de solda tendo resistência mais alta e a alongamento mais baixo. d O gás de proteção é como combinado entre comprador e fornecedor, a menos que designado pelo sufixo "C" ou "M".
  • 425.
    AWS D1.1/D1.1M:2010 ANEXOV 405 A5.20/A5.20M, Especificação para Eletrodos de Aço de Carbono para Soldagem a Arco com Arame Tubular Classificação AWSa Resistência à Tração ksi [MPa] Limite de escoamento Mínimoa ksi [MPa] % Mínima Alongamentob Energia de Impacto Mínima no Entalhe V de Charpy A5.20 A5.20M E7XT-1C, -1M E7XT-2Cc, -2Mc E7XT-3c E7XT-4 E7XT-5C, -5M E7XT-6 E7XT-7 E7XT-8 E7XT-9C, -9M E7XT-10c E7XT-11 E7XT-12C, -12M E6XT-13c E7XT-13c E7XT-14c E6XT-G E7XT-G E6XT-GSc E7XT-GS E49XT-1C, -1M E49XT-2Cc, -2Mc E49XT-3c E49XT-4 E49XT-5C, -5M E49XT-6 E49XT-7 E49XT-8 E49XT-9C, -9M E49XT-10c E49XT-11 E49XT-12C, -12M E43XT-13c E49XT-13c E49XT-14c E43XT-G E49XT-G E43XT-GSc E49XT-GSc . 70–95 [490–670] 70 [490] min. 70 [490] min. 70 -95 [490-670] 70 -95 [490-670] 70 -95 [490-670] 70 -95 [490-670] 70 -95 [490-670] 70 -95 [490-670] 70 [490] min. 70 -95 [490-670] 70 -90 [490-620] 60 [430] min. 70 [490] min. 70 [490] min. 60 -80 [430-600] 70 -95 [490-670] 60 [430] min. 70 [490] min. 58 [390] Não Especificado Não Especificado 58 [390] 58 [390] 58 [390] 58 [390] 58 [390] 58 [390] Não Especificado 58 [390] 58 [390] Não Especificado Não Especificado Não Especificado 48 [330] 58 [390] Não Especificado Não Especificado 22 Não Espec. Não Espec. 22 22 22 22 22 22 Não Espec. 20d 22 Não Espec. Não Espec. Não Espec. 22 22 Não Espec. Não Espec. 20 ft.lbf @ 0 F [27 J @ –20 C] Não Especificado Não Especificado Não Especificado 20 ft.lbf @ -20 F [27 J @ -30 C] 20 ft.lbf @ -20 F [27 J @ -30 C] Não Especificado 20 ft.lbf @ -20 F [27 J @ -30 C] 20 ft.lbf @ -20 F [27 J @ -30 C] Não Especificado Não Especificado 20 ft.lbf @ -20 F [27 J @ -30 C] Não Especificado Não Especificado Não Especificado Não Especificado Não Especificado Não Especificado Não Especificado a Limite de escoamento a compensação de 0,2% b Em comprimento medidor de 2 in [50 mm] quando um espécime de tração de diâmetro nominal de 0,500 in [12,5 mm] e razão nominal de comprimento medidor a diâmetro de 4:1 são usados. c Essas classificações são pretendidas para soldagem de passe único. Elas não são para soldagem de passe múltiplo. Apenas resistência à tração é especificada. d Em comprimento medidor de 1 in [25 mm] quando um espécime de tração de diâmetro nominal de 0,250 [6,5 mm] é usado como permitido para tamanhos de 0,045 in [1,2 mm] e menores da classificação E7XT-11 [E49XT-11].
  • 426.
    AWS D1.1/D1.1M:2010 ANEXOV 406 A5.23/A5.23M, Especificação para Fluxos e Aço de Baixa Liga para Soldagem a Arco Submerso Classificações de Eletrodo-Fluxoa Resistência à Traçãob psi [MPa] Limite de escoamentob (Compensação de 0,2%) psi [MPa] Alongamentob % A5.23 A5.23M Classificações de Passe Múltiplo F7XX-EXX-XX F8XX-EXX-XX F9XX-EXX-XX F10XX-EXX-XX F11XX-EXX-XX F12XX-EXX-XX F13XX-EXX-XX F49XX-EXX-XX F55XX-EXX-XX F62XX-EXX-XX F69XX-EXX-XX F76XX-EXX-XX F83XX-EXX-XX F90XX-EXX-XX 70 000-95 000 [490-660] 80 000-100 000 [550-700] 90 000-110 000 [620-760] 100 000-120 000 [690-830] 110 000-130 000 [760-900] 120 000-140 000 [830-970] 130 000-150 000 [900-1040] 58 000 [400] 68 000 [470] 78 000 [540] 88 000 [610] 98 000 [680] 108 000 [740] 118 000 [810] 22 20 17 16 15c 14c 14c Classificações de Duas Execuções F6TXX-EXX F7TXX-EXX F8TXX-EXX F9TXX-EXX F10TXX-EXX F11TXX-EXX F12TXX-EXX F13TXX-EXX F43TXX-EXX F49TXX-EXX F55TXX-EXX F62TXX-EXX F69TXX-EXX F76TXX-EXX F83TXX-EXX F90TXX-EXX 60 000 [430] 70 000 [490] 80 000 [550] 90 000 [620] 100 000 [690] 110 000 [760] 120 000 [830] 130 000 [900] 50 000 [350] 60 000 [415] 70 000 [490] 80 000 [555] 90 000 [625] 100 000 [690] 110 000 [760] 120 000 [830] 22 22 20 17 16 15 14 14 a A letra “S” irá aparecer depois de “F” como parte da designação de classificação quando o fluxo sendo classificado é uma escória prensada ou uma mistura de escória prensada com fluxo sem uso (virgem). A letra "C" irá aparecer após "E" como parte de uma designação de classificação quando o eletrodo usado é um eletrodo compósito. Para classificações de duas execuções,a letra “G” aparecerá após o designador de impacto (imediatamente antes do hífen) para indicar que o aço base usado para classificação não é um dos aços base prescritos em AWS A5.23/A5.23M mas é um aço diferente, como acordado entre o comprador e o fornecedor. A letra "X" usada em vários lugares nessa tabela representa, respectivamente, a condição de tratamento de aquecimento, a tenacidade do metal de solda e a classificação do metal de solda. b Para classificações de passe múltiplo, os requisitos listados na tabela para limite de escoamento e % de alongamento (em comprimento medidor de 2 in [50 mm]) são requisitos mínimos. Para classificações de duas execuções, os requisitos listados para resistência à tração e % de alongamento (em comprimento medidor de 1 in [25 mm]) são requisitos mínimos. c Alongamento pode ser reduzido em um ponto percentual para os metais base F11XX-EXX-XX, F11XX-ECXX-XX, F12XX-EXX- XX, F12XX-ECXX-XX, F13XX-EXX-XX, e F13XX-ECXX-XX [F76-EXX-XX, F76-ECXX-XX, F83XX-EXX-XX, F83XX-ECXX- XX, F90XX-EXX-XX, e F90XX-ECXX-XX] nos 25% superiores de sua faixa de resistência à tração.
  • 427.
    AWS D1.1/D1.1M:2010 ANEXOV 407 A5.28/A5.28M, Especificação para Eletrodos e Varas de Baixa Liga para Soldagem com Proteção para Soldagem a Arco co Gás de Proteção Classificação AWS Gás de Proteçãoa Resistência à Tração (mínima) Limite de escoamentob (mínima) Alongamentob Percentual (mínima) Condição de Teste A5.28 A5.28M psi MPa psi MPa ER70S-B2L E70C-B2L ER70S-A1 ER49S-B2L E49C-B2L ER49S-A1 Argônio/1–5% O2 (Classes SG-AO-1 a SG-AO-5) 75 000 515 58 000 400 19 PWHT ER80S-B2 E80C-B2 ER55S-B2 E55C-B2 80 000 550 68 000 470 19 ER80S-B3L E80C-B3L ER55S-B3L E55C-B3L 80 000 550 68 000 17 ER90S-B3 E90C-B3 ER62S-B3 E62C-B3 90 000 620 78 000 540 17 ER80S-B6 ER55S-B6 80 000 550 68 000 470 17 E80C-B6 E55C-B6 80 000 550 68 000 470 17 ER80S-B8 ER55S-B8 80 000 550 68 000 470 17 E80C-B8 E55C-B8 80 000 550 68 000 470 17 ER90S-B9 ER62S-B9 Argônio/5% O2 (Classe SG-AC-5) 90 000 620 60 000 410 16 E90C-B9 E62C-B9 Argônio/5-25% CO2 (Classes SG-AC-5 a SG-AC-25) E70C-Ni2 E49C-Ni2 Argônio/1–5% O2 (Classes SG-AO-1 a SG-AO-5) 70 000 490 58 000 400 24 PWHT ER80S-Ni1 E80C-Ni1 ER55S-Ni1 E55C-Ni1 80 000 550 68 000 470 24 Soldagem em Bruto ER80S-Ni2 E80C-Ni2 ER80S-Ni3 E80C-Ni3 ER55S-Ni2 E55C-Ni2 ER55S-Ni3 E55C-Ni3 80 000 550 68 000 470 24 PWHT ER80S-D2 ER55S-D2 CO2 (Classe SG-C) 80 000 550 68 000 470 17 Soldagem em Bruto ER90S-D2 E90C-D2 ER62S-D2 E62C-D2 Argônio/1–5% O2 (Classes SG-AO-1 a SG-AO-5) 90 000 620 78 000 540 17 ER100S-1 ER69S-1 Argônio/2% O2 (Classe SG-AO-2) 100 000 690 88 000 610 16 ER110S-1 ER76S-1 110 000 760 95 000 660 15 ER120S-1 ER83S-1 120 000 830 105 000 730 14 E90C-K3 E62C-K3 Argônio/5-25% CO2 (Classes SG-AC-5 a SG-AC-25) 90 000 620 78 000 540 18 E100C-K3 E69C-K3 100 000 690 88 000 610 16 E110C-K3 E110C-K4 E76C-K3 E76C-K4 110.000 760 98 000 680 15 E120C-K4 E83C-K4 120 000 830 108 000 750 15 E80C-W2 E55C-W2 80 000 550 68 000 470 22 (Continuação)
  • 428.
    AWS D1.1/D1.1M:2010 ANEXOV 408 A5.28/A5.28M, Especificação para Eletrodos e Varas de Baixa Liga para Soldagem com Proteção para Soldagem a Arco co Gás de Proteção (Continuação) Classificação AWS Gás de Proteçãoa Resistência à Tração (mínima) Limite de escoamentob (mínima) Alongamentob Percentual (mínima) Condição de Teste A5.28 A5.28M psi MPa psi MPa ER70S-G E70C-G ER49S-G E49C-G Nota c 70 000 490 Nota d Nota d Nota d Nota d ER80S-G E80C-G ER55S-G E55C-G Nota c 80 000 550 Nota d Nota d Nota d Nota d ER90S-G E90C-G ER62S-G E62C-G Nota c 90 000 620 Nota d Nota d Nota d Nota d ER100S-G E100C-G ER69S-G E69C-G Nota c 100 000 690 Nota d Nota d Nota d Nota d ER110S-G E110C-G ER76S-G E76C-G Nota c 110 000 760 Nota d Nota d Nota d Nota d ER120S-G E120C-G ER83S-G E83C-G Nota c 120 000 830 Nota d Nota d Nota d Nota d a O uso de um gás de proteção particular para propósitos de classificação não será interpretado de forma a restringir o uso de outras misturas de gases. Um metal de adição testado com misturas de gases, tais como Argônio/O2, ou Argônio/CO2, pode resultar em metal de solda tendo resistência e alongamento diferentes. b Limite de escoamento de compensação de 0,2% e alongamento em 2 in [51 mm] de comprimento medidor. c O gás de proteção deve ser como acordado entre o comprador e o fornecedor. d Não especificado (como acordado entre comprador e fornecedor).
  • 429.
    (Continua) AWS A5.29/A5.29M, Especificaçãopara Eletrodos de Aço de Carbono para Soldagem a Arco com Arame Tubular Classificação(ões) AWS a,b c A5.29 A5.29M Condição Resistência à Tração ksi [MPa] Limite de Elasticidade ksi [MPa] % Alongamen to Mínimo Impacto Mínimo de Energia no Entalhe V de Charpy E7XT5-A1C, -A1M E49XT5-A1C, -A1M PWHT 70-90 [490-620] 58 [400] min. 20 20 ft.lbf @ -20 F [27 J @ -30 C] E8XT1-A1C, -A1M E55XT1-A1C, -A1M PWHT 80-100 [550-690] 68 [470] min. 19 Não Especificado E8XT1-B1C, -B1M, -B1LC, -B1LM E55XT1-B1C, -B1M, -B1LC, -B1LM PWHT 80-100 [550-690] 68 [470] min. 19 Não Especificado E8XT1-B2C, -B2M, -B2HC, -B2HM, -B2LC, -B2LM E8XT5-B2C, -B2M, -B2LC, -B2LM E55XT1-B2C, -B2M, -B2HC, - B2HM, -B2LC, -B2LM E55XT5-B2C, -B2M, -B2LC, -B2LM PWHT 80-100 [550-690] 68 [470] min. 19 Não Especificado E9XT1-B3C, -B3M, -B3LC, -B3LM, -B3HC, -B3HM E9XT5-B3C, -B3M E62XT1-B3C, -B3M, -B3LC, - B3LM, -B3HC, -B3HM E62XT5-B3C, -B3M PWHT 90-110 [620-760] 78 [540] min. 17 Não Especificado E10XT1-B3C, -B3M E69XT1-B3C, -B3M PWHT 100-120 [690-830] 88 [610] min. 16 Não Especificado E8XT1-B6C,d -B6M,d -B6LC,d - B6LM,d E8XT5-B6C,d -B6M,d -B6LC,d -B6LMd E55XT1-B6C, -B6M, -B6LC, -B6LM E55XT5-B6C, -B6M, -B6LC, -B6LM PWHT 80-100 [550-690] 68 [470] min. 19 Não Especificado E8XT1-B8C,d –B8M,d –B8LC,d – B8LM,d E8XT5-B8C,d –B8M,d –B8LC,d – B8LMd E55XT1-B8C, -B8M, -B8LC, -B8LM E55XT5-B8C, -B8M, -B8LC, -B8LM PWHT 80-100 [550-690] 68 [470] min. 19 Não Especificado E9XT1-B9C, -B9M E62XT1-B9C, -B9M PWHT 90-120 [620-830] 78 [540] min. 16 Não Especificado E6XT1-Ni1C, -Ni1M E43XT1-Ni1C, -Ni1M AW 60-80 [430-550] 50 [340] min. 22 20 ft.lbf @ -20 F [27 J @ -30 C] E7XT6-Ni1 E49XT6-Ni1 AW 70-90 [490-620] 58 [400] min. 20 20 ft.lbf @ -20 F [27 J @ -30 C] E7XT8-Ni1 E49XT8-Ni1 AW 70-90 [490-620] 58 [400] min. 20 20 ft.lbf @ -20 F [27 J @ -30 C] E8XT1-Ni1C, -Ni1M E55XT1-Ni1C, -Ni1M AW 80-100 [550-690] 68 [470] min. 19 20 ft.lbf @ -20 F [27 J @ -30 C] E8XT1-Ni1C, -Ni1M E55XT1-Ni1C, -Ni1M PWHT 80-100 [550-690] 68 [470] min. 19 20 ft.lbf @ -60 F [27 J @ -50 C] E7XT8-Ni2 E49XT8-Ni2 AW 70-90 [490-620] 58 [400] min. 20 20 ft.lbf @ -20 F [27 J @ -30 C] E8XT8-Ni2 E55XT8-Ni2 AW 80-100 [550-690] 68 [470] min. 19 20 ft.lbf @ -20 F [27 J @ -30 C] E8XT1-Ni2C, -Ni2M E55XT1-Ni2C, -Ni2M AW 80-100 [550-690] 68 [470] min. 19 20 ft.lbf @ -40 F [27 J @ -40 C] E8XT5-Ni2C,e -Ni2Me E55XT5-Ni2C,e -Ni2Me PWHT 80-100 [550-690] 68 [470] min. 19 20 ft.lbf @ -75 F [27 J @ -60 C] E9XT1-Ni2C, -Ni2M E62XT1-Ni2C, -Ni2M AW 90-110 [620-760] 78 [540] min. 17 20 ft.lbf @ -40 F [27 J @ -40 C] E8XT5-Ni3C,e -Ni3Me E55XT5-Ni3C,e -Ni3Me PWHT 80-100 [550-690] 68 [470] min. 19 20 ft.lbf @ -100 F [27 J @ -70 C] E9XT5-Ni3C,e -Ni3Me E62XT5-Ni3C,e -Ni3Me PWHT 90-110 [620-760] 78 [540] min. 17 20 ft.lbf @ -100 F [27 J @ -70 C] ANEXO V AWS D1.1/D1.1M:2010
  • 430.
    ANEXO V AWS A5.29/A5.29M,Especificação para Eletrodos de Aço de Carbono para Soldagem a Arco com Arame Tubular Classificação(ões) AWS a, b Condiçãoc Resistência à Tração ksi [MPa] Limite de Elasticidade ksi [MPa] % Alongamento Mínimo Impacto Mínimo de Energia no Entalhe V de Charpy. A5.29 A5.29M E8XT11-Ni3 E55XT11-Ni3 AW 80-100 [550-690] 68 [470] min. 19 20 ft.lbf @ 0 F [27 J @ –20 C] E9XT1-D1C, -D1M E62XT1-D1C, -D1M AW 90-110 [620-760] 78 [540] min. 17 20 ft.lbf @ -40 F [27 J @ -40 C] E9XT5-D2C, -D2M E62XT5-D2C, -D2M PWHT 90-110 [620-760] 78 [540] min. 17 20 ft.lbf @ -60 F [27 J @ -50 C] E10XT5-D2C, -D2M E69XT5-D2C, -D2M PWHT 100-120 [690-830] 88 [610] min. 16 20 ft.lbf @ -40 F [27 J @ -40 C] E9XT1-D3C, -D3M E62XT1-D3C, -D3M AW 90-110 [620-760] 78 [540] min. 17 20 ft.lbf @ -20 F [27 J @ -30 C] E8XT5-K1C, -K1M E55XT5-K1C, -K1M AW 80-100 [550-690] 68 [470] min. 19 20 ft.lbf @ -40 F [27 J @ -40 C] E7XT7-K2 E49XT7-K2 AW 70-90 [490-620] 58 [400] min. 20 20 ft.lbf @ -20 F [27 J @ -30 C] E7XT4-K2 E49XT4-K2 AW 70-90 [490-620] 58 [400] min. 20 20 ft.lbf @ 0 F [27 J @ –20 C] E7XT8-K2 E49XT8-K2 AW 70-90 [490-620] 58 [400] min. 20 20 ft.lbf @ -20 F [27 J @ -30 C] E7XT11-K2 E49XT11-K2 AW 70-90 [490-620] 58 [400] min. 20 20 ft.lbf @ +32 F [27 J @ -0 C] E8XT1-K2C, -K2M E8XT5-K2C, -K2M E55XT1-K2C, -K2M E55XT5-K2C, -K2M AW 80-100 [550-690] 68 [470] min. 19 20 ft.lbf @ -20 F [27 J @ -30 C] E9XT1-K2C, -K2M E62XT1-K2C, -K2M AW 90-110 [620-760] 78 [540] min. 17 20 ft.lbf @ 0 F [27 J @ –20 C] E9XT5-K2C, -K2M E62XT5-K2C, -K2M AW 90-110 [620-760] 78 [540] min. 17 20 ft.lbf @ -60 F [27 J @ -50 C] E10XT1-K3C, -K3M E69XT1-K3C, -K3M AW 100-120 [690-830] 88 [610] min. 16 20 ft.lbf @ 0 F [27 J @ –20 C] E10XT5-K3C, -K3M E69XT5-K3C, -K3M AW 100-120 [690-830] 88 [610] min. 16 20 ft.lbf @ -60 F [27 J @ -50 C] E11XT1-K3C, -K3M E76XT1-K3C, -K3M AW 110-130 [760-900] 98 [680] min. 15 20 ft.lbf @ 0 F [27 J @ –20 C] E11XT5-K3C, -K3M E76XT5-K3C, -K3M AW 110-130 [760-900] 98 [680] min. 15 20 ft.lbf @ -60 F [27 J @ -50 C] E11XT1-K4C, -K4M E76XT1-K4C, -K4M AW 110-130 [760-900] 98 [680] min. 15 20 ft.lbf @ 0 F [27 J @ –20 C] E11XT5-K4C, -K4M E76XT5-K4C, -K4M AW 110-130 [760-900] 98 [680] min. 15 20 ft.lbf @ -60 F [27 J @ -50 C] E12XT5-K4C, -K4M E83XT5-K4C, -K4M AW 120-140 [830-970] 108 [745] min. 14 20 ft.lbf @ -60 F [27 J @ -50 C] E12XT1-K5C, -K5M E83XT1-K5C, -K5M AW 120-140 [830-970] 108 [745] min. 14 Não Especificado E7XT5-K6C, -K6M E49XT5-K6C, -K6M AW 70-90 [490-620] 58 [400] min. 20 20 ft.lbf @ -75 F [27 J @ -60 C] E6XT8-K6 E43XT8-K6 AW 60-80 [430-550] 50 [340] min. 22 20 ft.lbf @ -20 F [27 J @ -30 C] E7XT8-K6 E49XT8-K6 AW 70-90 [490-620] 58 [400] min. 20 20 ft.lbf sf @ -20 F [27 J @ -30 C] (Continua) AWS D1.1/D1.1M:2010 ANEXO V
  • 431.
    ANEXO V Classificação(ões) AWSa, b Condiçãoc Resistência à Tração ksi [MPa] Limite de Elasticidade ksi [MPa] % Alongamento Mínimo Impacto Mínimo de Energia no Entalhe V de Charpy. A5.29 A5.29M E10XT1-K7C, -K7M E69XT1-K7C, -K7M AW 100-120 [690-830] 88 [610] min. 16 20 ft.lbf @ -60 F [27 J @ -50 C] E9XT8-K8 E62XT8-K8 AW 90-110 [620-760] 78 [540] min. 17 20 ft.lbf @ -20 F [27 J @ -30 C] E10XT1-K9C, -K9M E69XT1-K9C, -K9M AW 100-120 [690-830]g 82-97 [560-670] 18 35 ft·lbf @ –60 F [27 J @ –50 C] E8XT1-W2C, -W2M E55XT1-W2C, -W2M AW 80-100 [550-690] 68 [470] min. 19 20 ft·lbf @ -20 F [27 J @ -30 C] EXXTX-G, g -GC,g –GM g EXXTX-G, g -GC,g –GM g A composição de depósito de solda, condição de teste (AW ou PWHT) e propriedades de impacto no entalhe em V de Charpy são como acordado entre o fornecedor e comprador. Requisitos para o teste de tensão, posicionamento, sistema de escória e gás protetor, se houver, estão em conformidade com aqueles indicados pelo dígitos usados. EXXTG-Xg EXXTG-Xg O sistema de escória, gás protetor, se houver, condição de teste (AW ou PWHT) e propriedades de impacto no entalhe em V de Charpy são como acordado entre o fornecedor e comprador. Requisitos para o teste de tensão, posicionamento e composição de depósito de solda estão em conformidade com aqueles indicados pelo dígitos usados. EXXTG-Gg EXXTG-Gg O sistema de escória, gás protetor, se houver, condição de teste (AW ou PWHT), propriedades de impacto no entalhe em V de Charpy e composição de depósito de solda são como acordado entre o fornecedor e comprador. Requisitos para o teste de tensão e posicionamento estão em conformidade com aqueles indicados pelo dígitos usados. a Os “Xs” na classificação real serão substituídos pelos designadores apropriados. b A colocação de um “G” na posição de um designador indica que aquelas propriedades foram acordadas entre o fornecedor e o comprador. c AW = Soldagem em Bruto. PWHT = Tratado com aquecimento pós-solda. d Esses eletrodos são presentemente classificados como E502TX-X ou E505TX-X em AWS A5.22-95. Com a próxima revisão de A5.22 eles serão removidos e exclusivamente listados nessa especificação. e Temperaturas PWHT que excedam 1150 F [620 C] irão diminuir as propriedades de impacto do entalhe em V de Charpy. f Para essa classificação (E10XT1-K9C, -K9M [E69XT1-K9C, -K9M]) a faixa de resistência à tração mostrada não é um requisito. É uma aproximação. g Os requisitos de resistência à tração, limite de escoamento, e % de alongamento para eletrodos EXXTX-G, -GC, -GM [EXXTX-G, -GC, -GM]; EXXTG-X e EXXTG-G [EXXTG-X e EXXXTG-G] são como mostrado nessa tabela para outras classificações de eletrodo (não incluindo as classificações E10XT1-K9C, -K9M [E69XT1-K9C, -K9M] ) tendo o mesmo designador de resistência à tração. ANEXO V AWS D1.1/D1.1M:2010 AWS A5.29/A5.29M, Especificação para Eletrodos de Aço de Carbono para Soldagem a Arco com Arame Tubular
  • 432.
    412 Essa página estáintencionalmente em branco.
  • 433.
    AWS D1.1/D1.1M:2010 413 Comentário sobre Códigode Soldagem Estrutural-Aço 17ª Edição Preparado pelo Comitê de Soldagem Estrutural D.1 da AWS Sob a Direção do Comitê de Atividades Técnicas da AWS Aprovado pela Diretoria da AWS
  • 434.
    AWS D1.1/D1.1M:2010 414 Essa páginaestá intencionalmente em branco.
  • 435.
    AWS D1.1/D1.1M:2010 415 Prefácio Esse prefácionão é parte do Comentário de AWS Dl.l/D1.1M:2010, Código de Soldagem Estrutural-Aço, mas foi incluído apenas para propósito de informação. Esse comentário sobre AWS Dl.l/D1.1M:2010 foi preparado para gerar melhor compreensão na aplicação do código a soldagem em construção em aço. Como o código é escrito na forma de uma especificação, não pode apresentar material de apoio ou discutir a intenção do Comitê de Soldagem Estrutural; é a função desse comentário atender a essa necessidade. Sugestões para aplicação assim como esclarecimento de requisitos do código são oferecidos com ênfase específica em seções novas ou revisadas que podem ser menos familiares ao usuário. Desde a publicação de primeira edição do código, a natureza das inquirições direcionadas à Sociedade Americana de Soldagem e ao Comitê de Soldagem Estrutural indicou que há alguns requisitos no código que são difíceis de entender ou não suficientemente específicos, e outros que parecem ser excessivamente conservadores. Deveria ser reconhecido que a premissa fundamental do código é fornecer estipulações gerais aplicáveis a qualquer situação e deixar latitude suficiente para o exercício de julgamento de engenharia. Outro ponto a ser reconhecido é que o código representa a experiência coletiva do comitê e enquanto algumas provisões podem parecer excessivamente conservadoras, elas foram baseadas em boas práticas de engenharia. O comitê, portanto, acredita que um comentário é o meio mais adequado de fornecer esclarecimento assim como interpretação apropriada de muitos dos requisitos do código. Obviamente, o tamanho do comentário impões algumas limitações com respeito à extensão da cobertura. Esse comentário não tem a intenção de fornecer um histórico do desenvolvimento do código, nem tem a intenção de fornecer um resumo detalhado dos estudos e dados de pesquisas revisados pelo comitê ao formular as provisões do código. Geralmente, o código não trata tais considerações de projeto como carga e a computação de tensões para o propósito de proporcionalizar os membros que carregam cargas da estrutura e suas conexões. É presumido que tais considerações são abordadas em outro lugar, em código de obras geral, especificação de ponte ou documento similar. Como uma exceção, o código fornece tensões permissíveis em soldas, provisões de fadiga em estruturas ciclicamente carregadas e estruturas tubulares e limitações de resistência para conexões tubulares. Essas provisões são relacionadas a propriedades particulares de conexões soldadas. O Comitê esforçou-se para produzir um documento útil adequado em linguagem, forma e cobertura para soldagem em construção de aço. O código fornece um meio de estabelecer padrões de soldagem para uso em projeto e construção pelo Proprietário ou o representante designado pelo Proprietário. O código incorpora provisões para regulação de soldagem que são consideradas necessárias para segurança pública. O comitê recomenda que o Proprietário ou representante do Proprietário sejam guiados por esse comentário na aplicação do código à estrutura soldada. O comentário não tem a intenção de complementar requisitos do código, mas apenas de fornecer um documento útil para interpretação e aplicação do código; nenhuma de suas provisões é vinculada. É intenção do Comitê de Soldagem Estrutural revisar o comentário em uma base regular de forma que comentários sobre alterações no código possam ser prontamente fornecidos ao usuário. Dessa forma, o comentário será sempre atualizado com a edição do Código de Soldagem Estrutural-Aço à qual está ligado. Alterações no comentário foram indicadas por sublinhamento. Alterações em ilustrações estão indicadas por linhas verticais na margem.
  • 436.
    AWS D1.1/D1.1M:2010 416 Esta páginaestá intencionalmente em branco
  • 437.
    AWS D1.1/D1.1M:2010 417 Comentário sobre Códigode Soldagem Estrutural-Aço C-1. Requisitos Gerais Usuários desse código podem notar que não há um Anexo C. Isso foi feito intencionalmente para evitar qualquer confusão com referências de comentário que usam "C-" para identificar texto, tabelas e figuras que são parte do comentário. A identificação do comentário com relação ao texto do código é relativamente direta. Se há um comentário sobre texto do código, por exemplo, subcláusula 4.5.1 do código, você pode identificá-lo na Cláusula C-4 do comentário rotulado C- 4.5.1. O "C-" indica que é comentário, o 4.5.1 identifica a parte do código à qual o comentário se refere. Da mesma forma, C-Tabela 6.1 indica um comentário sobre a Tabela 6.1 e C-Figura 5.4 indica comentário sobre a Figura 5.4. Se uma subcláusula, tabela ou figura não tem um comentário associado a ela, então não haverá seção rotulada no comentário para aquele componente do código. É por isso que ao ler o comentário a numeração pode parecer errática e parece que estão faltando algumas seções. Por exemplo, você pode ler as três seções seguintes do comentário em ordem: C-3.1.1, C-3.1.2, C-3.1.4. Pode notar que a sequência C-3.1.3 está faltando. Não é um erro tipográfico mas sim uma indicação de que não há comentários sobre a cláusula 3.1.3 desse código. O comentário tem suas próprias figuras e tabelas. Elas são identificadas de uma maneira ligeiramente diferente, é necessário ter cuidado para não confundi-las com comentários sobre as figuras e tabelas do código. Por exemplo, a primeira tabela da Cláusula C-6 que tenha comentário será rotulada "Tabela C-6.1." Note que o "c-" não vem antes de "Tabela", mas ao invés disso vem depois. "C-Tabela 6.1" é um comentário sobre a Tabela 6.1 do código; "Tabela C-6.1" é a primeira tabela de comentário na Cláusula C-6. O mesmo é verdade para o rótulo de figuras, por exemplo, "C-Figura 5.1" e "Figura C-5.1". C-1.1 Âmbito O Código de Soldagem Estrutural-Aço, doravante denominado como código, fornece requisitos de soldagem para a construção de estruturas de aço. Ele tem a intenção de ser complementar a qualquer código ou especificação para projeto e construção de estruturas de aço. Quando usando o código para outras estruturas, Proprietários, arquitetos e Engenheiros deveriam reconhecer que nem todas as provisões podem ser aplicáveis ou adequadas a sua estrutura particular. No entanto, quaisquer modificações no código consideradas necessárias por essas autoridades deveriam ser claramente mencionadas no acordo contratual entre o Proprietário e o Empreiteiro. C-1.3 Definições C-1.3.1 Engenheiro. O código não define o Engenheiro em termos de educação, registro profissional, licença profissional, área de especialização ou outro critério similar. O código não fornece um teste da competência ou habilidade do Engenheiro. No entanto, a presunção em todo o código no que diz respeito às responsabilidades e autoridades atribuídas ao Engenheiro é de que o indivíduo é competente e capaz de executar essas responsabilidades. Códigos de obras aplicáveis podem ter requisitos a serem atendidos pelo Engenheiro. Esses requisitos podem incluir, entre outros, conformidade com leis e regulamentos de jurisdição local governando a prática da Engenharia. C-1.3.3.1 Inspetor do Empreiteiro. Em edições anteriores desse código, o termo "inspetor de fabricação-ereção" foi usado para designar o indivíduo que supervisiona o trabalho do Empreiteiro. Responsabilidades específicas do Inspetor do Empreiteiro estão definidas em 6.1. Em algumas indústrias, isso pode ser designado como "controle de qualidade" ou "Inspeção de QC". C-1.3.3.2 Inspetor de Verificação. As atribuições do Inspetor de Verificação são identificadas pelo Engenheiro. O Engenheiro tem a responsabilidade de determinar se a inspeção de verificação é ou não requerida para um projeto específico e, quando requerido, definir as responsabilidades daquele Inspetor. Em algumas indústrias, esse tipo de inspeção é chamado "cerificação de qualidade" ou "inspeção de QA". Códigos de obras podem especificar requisitos de inspeção de verificação. O Engenheiro deveria então identificar tais requisitos em documentos de contrato. C-1.3.3.3 Inspetor Não Modificado. Quando a palavra "Inspetor" é usada sem o termo modificador "do Empreiteiro" ou "de Verificação", a provisão é
  • 438.
    C-1. REQUISITOS GERAISAWS D1.1/D1.1M:2010 418 igualmente aplicável a ambos os tipos de Inspetores (ver 6.1.4 como exemplo). C-1.3.4 OEM (Fabricante do Equipamento Original). As principais atividades e aplicações governadas por esse código envolvem tipicamente entidades separadas, que se encaixem nas categorias amplas de Empreiteiro e Engenheiro. Para algumas aplicações desse código, uma entidade funciona tanto como Engenheiro quanto como Empreiteiro. Nesse código, isso é designado como um Fabricante de Equipamento Original (OEM). Exemplos incluiriam sistemas de construção de metal como plataformas e equipamentos deslizantes, sistemas de armazenamento de material, torres de transmissão, postes de luz e estruturas de sinalização. Para essas situações, os documentos de contrato deveriam definir como lidar comas várias responsabilidades. Por definição, o código separa as funções de Engenheiro daquelas de Empreiteiro, e ainda assim essas estão fundidas nas aplicações OEM. Muitos arranjos possíveis existem, mas as seguintes categorias gerais capturam muitos exemplos de aplicações OEM.  OEM 1-O OEM assume responsabilidade por "produtos completos (turnkey)," e o Proprietário não tem envolvimento em assuntos de inspeção ou engenharia.  OEM 2-Um produto completo (turnkey) é entregue, mas o Proprietário fornece seu próprio Inspetor de verificação que relata suas descobertas ao Proprietário.  OEM 3-As atribuições do Engenheiro, como definido pelo código, são relacionadas tanto ao OEM como ao Engenheiro do Proprietário. Para atender cada uma das situações antecedentes, exemplos de linguagem contratual possível estão inclusos abaixo. Esses deveriam ser revisados para a certificação de que são aplicáveis à situação específica. Exemplo de Linguagem para OEM 1: "D.1.1 deve ser usado. O Engenheiro do Empreiteiro deve assumir asresponsabilidades do Engenheiro conforme definido em 1.3.1. Desvios dos requisitos do código como descrito em 1.4.1 não devem ser permitidos. Exemplo de Linguagem para OEM 2: "D.1.1 deve ser usado. O Engenheiro do Empreiteiro deve assumir as responsabilidades do Engenheiro como definido em 1.3.1, exceto todas as referências ao "Engenheiro" na Cláusula 6, que devem significar o "Proprietário". A verificação de inspeção deve ser como determinado pelo Proprietário, e o Inspetor de Verificação deve relatar os resultados ao Proprietário. Além disso, decisões tomadas pelo Engenheiro do Empreiteiro que requeiram alterações no código como descrito por 1.4.1 devem ser submetidas ao Proprietário para aprovação". Exemplo de Linguagem para OEM 3: Nenhuma linguagem específica é fornecida aqui porque o número de permutações é muito grande. O usuário é encorajado a olhar para cada referência ao Engenheiro e resolver como lidar com cada situação. Como exemplo, os conteúdos das Cláusulas 1, 2, e 6 pode ser atribuído ao Engenheiro do Proprietário e as responsabilidades das Cláusulas 3, 4, 5 e 7 atribuídas ao Engenheiro do Empreiteiro. C-1.3.6.2 Deveria. As provisões que contêm "deveria" são de recomendação (ver 5.29, por exemplo: aberturas de arco deveriam ser evitadas, mas não são proibidas). No entanto, se estão presentes, "devem" (isto é, é requerido) ser removidas. Certas provisões do código são opções que são dadas ao Empreiteiro (ver 5.27 como um exemplo em que martelamento é permitido (pode), mas não requerido (deve) em camadas intermediárias de solda). C-1.3.6.3 Pode. Algumas provisões do código não são obrigatórias a menos que o Engenheiro as invoque em documentos de contrato. C-1.4 Responsabilidades C-1.4.1 Responsabilidades do Engenheiro O Engenheiro é responsável quando da preparação do contrato por fornecer recomendações ao Proprietário ou autoridade contratual com respeito à adequação do código para atender os requisitos particulares de uma estrutura específica. O Engenheiro pode alterar quaisquer requisitos do código, mas a base para tais alterações deveria ser bem documentada e levar em consideração a adequação para serviço usando experiência passada, evidência experimental ou análise de engenharia, considerando tipo de material, efeitos de carga e fatores ambientais. O Engenheiro pode recomendar, de tempos em tempos durante o curso do projeto, alterações adicionais às provisões do código para o bem do projeto. Tais alterações deveriam ser documentadas. O efeito sobre a relação contratual deveria ser resolvido entre as partes envolvidas. Exemplos comuns de modificações de subscrição ao código envolvidas incluem resolução de dificuldades de projeto não previstas, manejo de não conformidades menores e lidar com assuntos específicos de violação do código. Por exemplo, a aceitação de uma não conformidade menor com a devida consideração aos requisitos de serviço pode ser mais desejável para o projeto em geral do que ordenar um reparo que resultaria em conformidade total com o código, mas em um produto final menos desejável. A premissa fundamental do código é fornecer estipulações aplicáveis à maioria das situações. Critérios de aceitação para soldas de produção diferentes daqueles especificados no código podem ser usados, mas deve haver uma base para tal critério de aceitação alternativo, como uma experiência passada, evidência experimental ou análise de engenharia.
  • 439.
    C-1. REQUISITOS GERAISAWS D1.1/D1.1M:2010 419 Após o contrato ser homologado, o Engenheiro pode alterar requisitos no código, mas as alterações deveriam ser documentadas e acordadas entre as partes envolvidas. O Engenheiro não pode modificar ou alterar qualquer provisão do código unilateralmente após os contratos serem homologados sem potencialmente criar conflito com os termos do contrato. Esses tipos de modificações deveriam ser acordados mutualmente entre as partes envolvidas para atender satisfatoriamente circunstâncias imprevistas. É requerido que o Engenheiro determine a adequação de um detalhe particular de junta para a montagem soldada específica. Detalhes de junta pré-qualificados, assim como detalhes particulares de junta que podem ser qualificados por teste podem não ser adequados para todas as condições de carga ou condições de restrição. Deveriam ser feitas considerações às propriedades através-espessura de aços, possibilidade de ruptura lamelar, tamanhos e proporções de membros sendo anexados e outros fatores. C-1.4.1(1) Certas provisões do código são obrigatórias apenas quando especificado pelo Engenheiro. Isso é requerido pelo código que seja feito em documentos de contrato. C-1.4.1(2) O Engenheiro tem a autoridade e a responsabilidade de determinar quando uma NDT (se houver) será especificada para um projeto específico. O Engenheiro deveria considerar as consequências de falha, a aplicabilidade do processo de inspeção para a solda específica envolvida e reconhecer limitações dos métodos NDT especificados e a extensão dessa NDT. C-1.4.1(3) A inspeção de verificação não é requerida pelo código e, se usada, é requerido pelo código que seja especificada pelo Engenheiro (ver 6.1.2.2). O Engenheiro podem escolher não ter inspeção de verificação, ter inspeção de verificação de apenas parte da fabricação ou inspeção de verificação que substitua completamente a inspeção do Empreiteiro. No entanto, quando escolhe eliminar a inspeção do Empreiteiro, o Engenheiro deveria estar ciente de que há um grande número de responsabilidades atribuídas ao Inspetor do Empreiteiro que incluem atividades que podem não ser tradicionalmente consideradas como parte da inspeção de verificação (ver 6.1.2.1, 6.2, 6.3, 6.5 e 6.9). Essas atividades são importantes para controlar qualidade de solda. Não deve ser presumido que NDT, não importa sua extensão, irá eliminar a necessidade de controle dessas atividades. C-1.4.1(5) A tenacidade ao entalhe para metal de solda, metal base e/ou HAZs não é determinada por esse código. Tais requisitos, quando necessário, são requeridos pelo código a serem especificados nos documentos de contrato. C-1.4.1(6) O código contém provisões para aplicações não tubulares carregadas tanto estaticamente quanto ciclicamente. Os critérios para tais fabricações diferem, e como tal, as condições de carga e forma de aço aplicável são requeridas pelo código a serem especificadas nos documentos de contrato. C-1.4.1(7) O Engenheiro é responsável por especificar requisitos adicionais de fabricação e inspeção que não são necessariamente tratados no código. Esse requisitos adicionais podem ser necessários por causa de condições tais como: temperaturas extremas de operação (quente ou fria) da estrutura, requisitos únicos de fabricação de material, etc. C-1.4.1(8) Para aplicações OEM (ver 1.3.4), algumas das responsabilidades do Engenheiro são realizadas pelo Empreiteiro. O código requer que documentos de contrato definam essas responsabilidades (ver C-1.3.4). C-1.4.2 Responsabilidades do Empreiteiro. A lista abreviada em 1.4.2 destaca áreas principais das responsabilidades do Empreiteiro, e não é completa. Responsabilidades do Empreiteiro estão contidas em todo o código. C-1.4.3 Inspeção de Verificação. A lista abreviada em 1.4.3 destaca áreas principais de responsabilidade dos vários inspetores, e não é completa. A Cláusula 6 destaca responsabilidades específicas. C-1.8 Unidades de Medida Padrão D1.1 tem um sistema de duas unidades: Unidades métricas Convencionais dos EUA e SI (métrica). Por todo o código, o usuário encontrará dimensões em Unidades Convencionais dos EUA seguidas por Unidades SI (métricas) em colchetes []. As Unidades SI são conversões suaves das Unidades Convencionais dos EUA; isto é, cada valor de conversão "suave" foi arredondado de um valor SI usando uma conversão que é próxima ao invés de um valor racional baseado em um fator de conversão. Por exemplo, a conversão suave de 1/2 in é 12 mm, e a conversão rígida é 12,7 mm. De forma similar, a conversão suave para cada polegada é 25 mm e a conversão rígida é 25,4 mm. É inapropriado escolher entre tolerâncias Convencionais dos EUA e SI; cada sistema de unidades deveria ser usado como um todo, e o sistema usado deveria ser o mesmo usado nos desenhos de oficina. Em termos de WPSs, fabricantes não deveriam ser requeridos a executar novamente PQRs para uma alteração em unidades. No entanto, WPSs deveriam ser esboçadas nas unidades apropriadas.
  • 440.
    C-1. REQUISITOS GERAISAWS D1.1/D1.1M:2010 420 Esta página está intencionalmente em branco
  • 441.
    AWS D1.1/D1.1M:2010 421 C-2. Projetode Conexões Soldadas C-2.3 Planos e Especificações de Contrato C-2.3.2 Requisitos de Tenacidade ao Entalhe. Tenacidade ao entalhe é uma propriedade material que fornece uma medida de sua sensibilidade a fratura quebradiça. O teste CVN é o método mais comum de medir tenacidade ao entalhe. Outros testes estão disponíveis e podem ser mais confiáveis, mas são também mais complexos e caros. Medidas mais precisas de tenacidade não são justificáveis a menos que métodos mecânicos de fratura sejam usados no projeto. A demanda por tenacidade depende do tipo de carga, taxa de aplicação da carga, temperatura e outros fatores. Redundância e as consequências de fratura também podem ser consideradas para determinar requisitos de teste CVN para uma junta soldada. Muitas aplicações não requerem uma medida de tenacidade ao entalhe. Em aplicações em que um valor mínimo de teste CVN é requerido, a especificação de uma classificação de metal de adição que inclua valores de teste CVN pode ser suficiente. Muitas classificações de metal de adição estão disponíveis que fornecem critérios de teste CVN. A maioria dos metais de adição usados em aplicações estruturais de campo não é testada para valores de teste CVN. Dos metais de adição que são testados para valores de teste CVN e usados em aplicações estruturais, o mais comum atende 20 ft.lbs a -20º ou 0ºF [27 J a – 29º ou -l8°C]. Em casos mais severos, WPSs podem ser qualificadas para atender valores de teste CVN. Deveria ser reconhecido que os critérios de teste CVN em metais de adição ou em uma qualificação WPS relacionam-se à uma suscetibilidade de material a fratura quebradiça mas não é uma medida precisa da propriedade material em uma junta de produção. O objetivo da maioria dos requisitos de teste CVN é fornecer alguma garantia de que o material não está em sua prateleira mais baixa de tenacidade ao entalhe na temperatura de serviço da estrutura. Formas e placas estruturais foram pesquisadas e teste CVN resultou em valores de 15 ft·lbs [20 J] ou maiores a 40º F [4º C]. Essas pesquisas foram conduzidas a pedido de produtores de fábrica para mostrar que teste CVN de metal base não era necessário para a maioria das aplicações de obras (ver Referência 30). As subcláusulas 4.8.1, C-2.5.2.2, C-4.13.4.4, e Cláusula 4, Parte D contêm informações sobre valores de teste CVN (ver também Fracture and Fatigue Control in Structures, Barsom e Rolfe). C-2.3.4 Tamanho e Comprimento de Solda. O Engenheiro preparando desenhos de projeto do contrato não pode especificar a profundidade de chanfro "S" sem saber o processo de soldagem e a posição de soldagem. O código é explícito ao estipular que apenas o tamanho de solda "(E)" será especificado nos desenhos de projeto para soldas em chanfro PJP (ver 2.3.5.1). Isso permite que o Empreiteiro produza o tamanho de solda atribuindo uma profundidade de preparação para o chanfro mostrado nos desenhos de oficina em relação à escolha do Empreiteiro de processo de soldagem e posição de soldagem. A penetração de raiz irá geralmente depender do ângulo na raiz do chanfro em combinação com a abertura de raiz, a posição de soldagem e o processo de soldagem. Para juntas usando bisel e soldas em chanfro em V-, esses fatores determinam a relação entre a profundidade de preparação e o tamanho de solda para soldas em chanfro PJP pré-qualificadas. A resistência de soldas em filete depende do tamanho de garganta; no entanto, o tamanho de perna de soldas em filete é a dimensão mais útil e mensurável para execução do trabalho. Nos documentos de contrato e desenhos de oficina, quando as partes anexadas se encontram em um ângulo entre 80º e 100º, o tamanho efetivo é tomado como a dimensão de garganta de uma solda de filete de 90º, e é designado nos documentos de contrato e nos desenhos de oficina por tamanho de perna. No lado do ângulo agudo de juntas em T- significativamente oblíquas [ver Figura 3.11(A), (B) e (C)], a relação entre tamanho de perna e garganta efetiva é complexa. Quando as partes se encontram em ângulos menores que 100º, os documentos de contrato mostram a garganta efetiva requerida para fornecer condições de projeto, e desenhos de oficina mostram tamanho de perna requerido para fornecer garganta efetiva especificada. Quando o ângulo agudo é entre 30 e 60º, o tamanho efetivo de solda depende da redução de perda Z [ver Figura 3.11(D)], que depende da posição e processo de soldagem. Especificar apenas o tamanho de garganta efetiva requerido para satisfazer condições de projeto nos documentos de contrato permite que o fabricante, usando processos de soldagem adequados a seu
  • 442.
    C-2. PROJETO DECONEXÕES SOLDADAS AWS D1.1/D1.1M:2010 422 equipamento e prática, indique sua intenção e instruções por WPSs apropriadas, e símbolos nos desenhos de oficina. C-2.3.5.4 Dimensões Pré-qualificadas de Detalhe. O histórico e a base para pré-qualificação de juntas estão explicados em C-3.2.1. Projetistas e detalhadores deveriam observar que a pré-qualificação de geometrias de junta é baseada em condições provadas satisfatórias de forma, liberação, posição de soldagem e acesso a uma junta entre elementos de placa para um soldador qualificado depositar bom metal de solda bem fundido ao metal base. Outras considerações de projeto importantes para a adequação de uma junta particular para uma aplicação particular não são parte do status pré-qualificado. Tais considerações incluem, entre outras: (1) o efeito de restrição imposto por rigidez de metal base conectado em contração de metal de solda, (2) o potencial de causar ruptura lamelar por grandes depósitos de solda sob condições restritas em metal base tensionado na direção através-espessura, (3) limitações no acesso do soldador à junta para posicionamento e manipulação apropriados do eletrodo impostas por metal base3 próximo mas não parte da junta, (4) o potencial para estado de tensão biaxial ou triaxial de tensão em soldas de intersecção, (5) limitações em acesso para permitir inspeção UT ou RT confiável, (6) efeito de tensões residuais de tração a partir de retração de solda, (7) efeito de soldas maiores que o necessário em distorção. C-2.4 Áreas Efetivas C-2.4.1.4 Tamanho Efetivo de Soldas em Chanfro Curvado. Seções estruturais retangulares ocas são formadas de uma maneira que pode não resultar em um ângulo de 90º. A pesquisa apoiando a Tabela 2.1 considera essa prática e 2t foi considerado aceitável. C-2.4.2.5 Comprimento Máximo Efetivo. Quando soldas de filete longitudinais paralelas à tensão são usadas para transmitir a carga para a extremidade de um membro carregado axialmente, as soldas são chamadas "carregadas na extremidade". Exemplos típicos de tais soldas incluiriam, entre outros, juntas sobrepostas soldadas longitudinalmente na extremidade de membros axialmente carregados, soldas anexando reforços de rolamento, soldas anexando reforços transversais às braçadeiras de traves projetadas em base de ação de tensão de campo e casos similares. Exemplos típicos de soldas de filete carregadas longitudinalmente que não são consideradas carregadas na extremidade incluem, entre outros, soldas que conectam placas ou formas para formar uma seção transversal construída na qual a força de cisalhamento é aplicada a cada incremento de comprimento de tensão de solda dependendo da distribuição de carga de cisalhamento ao longo do comprimento do membro, soldas anexando ângulos de conexão de braçadeira de viga e placas de cisalhamento porque o fluxo de força de cisalhamento a partir da braçadeira de trave ou viga para a solda é essencialmente uniforme em todo o comprimento da solda, isto é, a solda não é carregada na extremidade a despeito do fato de que é carregada paralela ao eixo da solda. Nem o fator de redução se aplica a soldas anexando reforços a braçadeiras projetadas na base de cisalhamento de viga convencional porque os reforços e soldas não são sujeitos a tensão axial calculada mas servem meramente para manter a braçadeira plana. A distribuição de tensão ao longo do comprimento de soldas em filete carregadas na extremidade está longe de uniforme e depende das relações complexas entre a firmeza de solda de filete longitudinal relativa à firmeza dos metais base conectados. Além de um certo comprimento, é não conservador assumir que a tensão média sobre o comprimento total da solda pode ser tomado como igual à tensão completa permissível. A experiência tem mostrado que quando o comprimento da solda é igual a aproximadamente 100 vezes o tamanho de solda ou menos, é razoável assumir que o comprimento efetivo é igual ao comprimento real. Para comprimentos de solda maiores que 100 vezes o tamanho de solda, o comprimento efetivo deveria ser considerado menor que o comprimento real. O coeficiente de redução, β, fornecido em 2.4.2.5 é o equivalente (em Unidades e terminologia dos EUA) do Eurocode 3, que é uma aproximação simplificada de fórmulas exponenciais desenvolvidas por testes e estudos de elemento finito realizados na Europa por muitos anos. Os critérios são baseados em consideração combinada de resistência de ruptura para soldas de filete com tamanho de perna menor que 1/4 in [6 mm] e em julgamento baseado no limite de servicibilidade de deslocamento ligeiramente menor que 1/32 in [1 mm] na extremidade da solda para soldas com tamanho de perna de 1/4 in [6 mm] e maior. Matematicamente, a multiplicação do comprimento real pelo fator leva a uma expressão que implica que o comprimento efetivo atinja um máximo quando o comprimento real é aproximadamente 300 vezes o tamanho de perna; portanto o comprimento máximo efetivo de uma solda de filete carregada na extremidade é considerado como 180 vezes o tamanho de perna de solda. C-2.6 Tensões C-2.6.1 Tensões Calculadas. É pretendido que as tensões calculadas a serem comparadas com as tensões permissíveis sejam tensões nominais determinadas por métodos de análise apropriados e não tensões de "ponto de aquecimento" que podem ser determinadas por análise de elemento finito usando uma malha mais fina que aproximadamente um pé. Algumas especificações de projeto aplicáveis invocadas requerem que certas juntas sejam projetadas para fornecer, não apenas as forças calculadas devido a cargas aplicadas, mas também uma certa percentagem mínima da resistência
  • 443.
    C-2. PROJETO DECONEXÕES SOLDADAS AWS D1.1/D1.1M:2010 423 do membro, a despeito da magnitude das forças aplicadas à junta. Exemplos de tais requisitos serão achados nas Especificações AISC. C-2.6.2 Tensões Calculadas devido à Excentricidade. Testes têm mostrado que equilibrar soldas ao redor do eixo neutro de um ângulo único ou membro de ângulo duplo ou membros similares não aumenta a capacidade de carga da conexão. Portanto, soldas não equilibradas são permitidas. Deve ser notado que soldagens de acabamento não são necessárias, pois ruptura não é um problema (ver Figura C-2.1). C-2.6.4 Tensões de Metal de Solda Permissíveis. A filosofia subjacente às provisões do código para tensões em soldas pode ser descrita pelos seguintes princípios: (1) O metal de solda em soldas em chanfro CJP sujeitas a tensões normais à área efetiva deveria ter propriedades mecênicas proximamente comparáveis àquelas do metal base. Isso, em efeito, fornece ligações soldadas quase homogêneas de seção transversal não reduzida de forma que tensões usadas para proporcionalizar as partes componentes podem ser usadas no e adjacentes ao metal de solda depositado. Para tensões resultantes de outras direções de carga, metal de solda de resistência menor pode ser usado, contanto que os requisitos de resistência sejam atendidos. (2) Para soldas de filete e soldas em chanfro PJP, o projetista tem uma flexibilidade maior na escolha de propriedades mecânicas de metal de solda comparado com aqueles componentes que estão sendo anexados. Na maioria dos casos, a força a ser transferida por essas soldas é menor que a capacidade dos componentes. Tais soldas são proporcionais à força a ser transferida. Isso pode ser alcançado com metal de solda de resistência mais baixa que o metal base, contanto que a área de garganta seja adequada para suportar a força dada. Por causa da maior ductilidade do metal de solda de resistência mais baixa, essa escolha pode ser preferível. Uma tensão de trabalho igual a 0,3 vezes a resistência à tração do metal de adição, como designado pela classificação de eletrodo, aplicada à garganta de uma solda de filete foi mostrada por testes (Referência 31) para fornecer um fator de segurança numa faixa que vai de 2,2 para forças de cisalhamento paralelas ao eixo longitudinal da solda, a 4,6 para forças normais ao eixo sob serviço de carga. Essa é a base para os valores dados na Tabela 2.3. (3) As tensões na garganta efetiva de soldas de filete são sempre consideradas de cisalhamento. Embora a resistência a falha de soldas de filete carregadas perpendicularmente a seu eixo longitudinal seja maior que aquela de soldas de filete paralelas a esse eixo, capacidades de carga maiores não foram atribuídas na Tabela 2.3 para soldas de filete carregadas de forma normal a seu eixo longitudinal. Critérios alternativos permitindo tensões permissíveis mais altas para soldas de filete carregadas obliquamente ao eixo longitudinal da solda são fornecidos em 2.6.4.2. (4) A capacidade de carga de qualquer solda é determinada pela mais baixa das capacidades calculadas em cada plano de transferência de tensão. Esses planos para cisalhamento em soldas de filete e em chanfro são ilustrados na Figura C-2.2. (a) Plano 1-1, no qual a capacidade pode ser governada pela tensão de cisalhamento permissível para material "A". (b) Plano 2-2, no qual a capacidade é governada pela tensão de cisalhamento permissível do metal de solda. (c) Plano 3-3, no qual a capacidade pode ser governada pela tensão de cisalhamento permissível para material "B". C-2.6.4.2 Tensão de Solda de Filete Permissível Alternativa. Há muito foi reconhecido que o desempenho de resistência e deformação de elementos de solda de filete depende do ângulo que a força faz com o eixo do elemento de solda. Soldas de filete carregadas transversalmente têm resistência aproximadamente 50% maior que de soldas carregadas longitudinalmente. De modo inverso, é bem conhecido que soldas de filete carregadas transversalmente têm menos capacidade de distorção antes da fratura que soldas de filete carregadas longitudinalmente. Em seguida aos testes de Higgins e Preece, o Welding Journal Research Supplement, de Outubro de 1968, sobre os interesses de simplicidade e porque os métodos para lidar com interação entre casos de carga transversal e longitudinal não estavam disponíveis, a tensão permissível em soldas de filete no código foi limitada a 0,3 FEXX. Esse valor é baseado nos resultados de teste de resistência mais baixos para soldas carregadas longitudinalmente com o fator de segurança contra ruptura de aproximadamente 2,2 a 2,7. Os mesmos critérios básicos ainda se aplicam; no entanto o código agora fornece a opção de uma tensão permissível mais alta para soldas de filete baseadas no cálculo de um valor específico para o ângulo de carga. A resistência de ruptura de cisalhamento de um único elemento de solda de filete em vários ângulos de aplicação de carga foi originalmente obtida das relações de carga-deformação de Butler (1972) para eletrodos E60. Curvas para eletrodos E70 foram obtidas por Lesik (1990). O desempenho de resistência e deformação de soldas depende do ângulo que a força elemental resultante faz com o eixo do elemento de solda (ver Figura C-2.3). A relação de deformação de carga real para soldas de filete tomada de Lesik é mostrada na Figura C-2.4. A seguir está a fórmula para tensão de ruptura de solda, FV FV = 0,852 (1,0 + 0,50 sin.1,5 -θ) FEXX Porque a tensão permissível é limitada a 0,3 FEXX para soldas longitudinalmente carregadas (θ=0º), os resultados de teste indicam que fórmulas em 2.6.4.2 e
  • 444.
    C-2. PROJETO DECONEXÕES SOLDADAS AWS D1.1/D1.1M:2010 424 2.6.4.3 fornecem um fator de segurança maior que o valor comumente aceitado de 2. C-2.6.4.3 Centro Instantâneo de Rotação. Quando grupos de solda são carregados em cisalhamento por uma carga externa que não age através do centro de gravidade do grupo, a carga é excêntrica e tenderá a causar rotação e translação relativas entre as partes conectadas pelas soldas. O ponto sobre o qual a rotação tende a acontecer é chamado centro instantâneo de rotação. Sua localização depende da excentricidade da carga, geometria do grupo de solda e deformação da solda em diferentes ângulos da força elemental resultante relativa ao eixo da solda. A força de resistência individual de cada unidade de elemento de solda pode pode presumivelmente agir em uma linha perpendicular a um raio passando através do centro instantâneo de rotação e do local dos elementos (ver Figura C-2.3). A resistência total de todos os elementos de solda combina para resistir à carga excêntrica, e quando o local correto do centro instantâneo de rotação foi selecionado, as equações no plano de estática (Σx,Σ ,ΣM) serão satisfeitas. Uma explicação completa do procedimento, inclusive amostra de problemas é dada em Tide (Referência 29). Técnicas numéricas, tais como aquelas dadas em Brandt (Referência 26), têm sido desenvolvidas para localizar o centro de rotação instantâneo para tolerância de convergência. Para eliminar possíveis dificuldades computacionais, a deformação máxima nos elementos de solda é limitada ao valor vinculado mais baixo de 0,17W. Para conveniência de projeto, uma fórmula elíptica simples é usada para F( ) para aproximar do polinomial derivado empiricamente em Lesik (Referência 28). C-2.6.4.4 Grupos de Solda Carregados Concentricamente. Uma solda carregada transversalmente a seu eixo longitudinal tem uma capacidade maior mas uma capacidade de deformação reduzida mais baixa em comparação a solda carregada ao longo de seu eixo longitudinal. Portanto, quando soldas carregadas em ângulos variados são combinadas em um único grupo de solda o projetista precisa considerar suas capacidades de deformação relativas para assegurar que todo o grupo de solda tem compatibilidade de deformação. O procedimento em 2.6.4.3 considera compatibilidade de deformação. Desde a introdução da equação em 2.6.4.2, que dá a resistência de uma solda de filete linear carregada no plano através de seu centro de gravidade como: Fv = 0,3 FEXX [1+0,5 sin1,5(θ)] muitos engenheiros simplesmente acrescentaram a capacidade das soldas de linha individuais em um grupo de solda enquanto negligenciavam compatibilidade de deformação de carga. Isso é uma prática não conservadora. O projeto de um grupo de solda concentricamente porém obliquamente carregado, além de ser realizado usando 2.6.4.4 como demonstrado na Figura C-2.5, pode ser alcançado graficamente usando a Figura C-2.6, as curvas de deformação por carga. Por exemplo, para achar a resistência do grupo de solda concentricamente carregado mostrado na Figura C-2.5, primeiro é determinado o elemento de solda com a capacidade de deformação mais limitada. Nesse caso é a solda transversalmente carregada. Ao desenhar uma linha vertical a partir do ponto de fratura, o aumento ou diminuição de resistência para os elementos remanescentes pode ser determinado. C-2.7 Configuração e Detalhes de Junta C-2.7.1 Considerações Gerais. Em geral, detalhes deveriam minimizar restrições que inibiriam comportamento dúctil, evitar concentração de soldagem indevida, assim como permitir amplo acesso para depositar metal de solda. C-2.7.3 Carga Através-Espessura de Metal Base. A laminação de aço para produzir formas e placas para uso em estruturas de aço faz com que o metal base tenha propriedades mecânicas diferentes nas diferentes direções ortogonais. Isso faz com que seja necessário que projetistas, detalhistas e fabricantes reconheçam o potencial para laminações e/ou ruptura lamelar de afetar a integridade das juntas concluídas, especialmente quando metal base espesso está envolvido. Laminações não resultam da soldagem. Elas são um resultado dos processos de manufatura de aço. Elas geralmente não afetam a resistência do metal base quando o plano da laminação é paralelo ao campo de tensão, isto é, tensionado na direção longitudinal ou transversal. Elas têm sim um efeito direto sobre a habilidade de metal base e juntas em T- e de ângulo de transmitir forças através-espessura. Rupturas lamelares, se e quando ocorrem, geralmente são resultado da contração de grandes depósitos de metal de solda sob condições de alta retenção. Rupturas lamelares raramente ocorrem quando o tamanho de solda é menor que cerca de 3/4 in a 1 in [20 mm a 25 mm]. Rupturas lamelares raramente ocorrem sob soldas de filete. Rupturas lamelares não ocorrem na ausência de restrição a contração de metal de solda quente solidificado; no entanto, os passes de solda iniciais solidificados depositados na área de raiz da solda podem fornecer um apoio interno rígido para deformações de contração de tração dos passes de solda subsequentemente depositados. Porque rupturas lamelares são causadas por contração de metal de solda solidificado que é forçado a ser acomodado em um comprimento curto de medidor por retenção compressiva de equilíbrio localizada, as deformações de direção através-espessura da unidade no metal base podem ser muitas vezes maiores que a deformação do limite de escoamento. Rupturas lamelares podem resultar. As deformações localizadas que podem produzir rupturas lamelares ocorrem após resfriamento durante a fabricação e constituem a condição mais severa que será imposta ao metal base na proximidade da junta na vida da estrutura. Porque as tensões compressiva e de tração na, ou próximas à, junta são autoequilibradas, e porque as deformações associadas com tensões de projeto aplicadas são uma
  • 445.
    C-2. PROJETO DECONEXÕES SOLDADAS AWS D1.1/D1.1M:2010 425 pequena fração daquelas associadas com retração de solda, cargas aplicadas externamente não iniciam rupturas lamelares; no entanto, se rupturas foram iniciadas pela soldagem, rupturas lamelares existentes podem ser estendidas. O projeto e detalhamento de juntas de ângulo e em T- estabelecem as condições que podem aumentar ou diminuir o potencial de ruptura lamelar, e fazer a fabricação de uma ligação soldada uma operação direta e simples ou uma operação difícil e virtualmente impossível. Portanto, é necessário atenção por parte de todos os membros da equipe, projetista, detalhista, fabricante e soldador, para minimizar o potencial de ruptura lamelar. Regras definitivas não podem ser fornecidas no código para assegurar que ruptura lamelar não ocorrerá, assim esse comentário tem a intenção de fornecer compreensão das causas e fornecer diretrizes sobre meios de minimizar a probabilidade de ocorrência. As seguintes precauções têm demonstrado em testes e experiência que minimizam o risco de ruptura: (1) Espessura de metal base e tamanho de solda deveriam ser adequados para satisfazer requisitos de projeto; no entanto, projetar juntas baseadas em tensões menores que as tensões permissíveis do código, mais do que resultar em um projeto conservador, resulta em restrição aumentada e tamanho de solda aumentado, e deformação de retração que devem ser acomodados. Portanto tal prática aumenta, mais do que diminui, o potencial de ruptura lamelar. (2) Usar eletrodos de baixo nível de hidrogênio quando soldando juntas de ângulo e em T- grandes. Hidrogênio absorvido não é considerado a principal causa de início de ruptura lamelar, mas o uso de eletrodos de baixo nível de hidrogênio em juntas grandes (longitudinais, transversais ou através- espessura) para minimizar a tendência de trincas de resfriamento induzidas por hidrogênio é de qualquer forma uma boa prática. O uso de eletrodos que não sejam de baixo nível de hidrogênio pode causar problemas. (3) A aplicação de uma camada de passes de solda de revestimento de espessura de aproximadamente 1/8 in a 3/16 in [3 mm a 5 mm] à face do metal base a ser estressado na direção através-espessura antes da montagem da junta tem mostrado em testes e experiência que reduz a possibilidade de ruptura lamelar. Tal camada de revestimento fornece metal de solda duro com uma estrutura de grão fundido em lugar da estrutura de grão de aço laminado anisotrópico fibroso no local de deformações por retração mais intenso. (4) Em juntas grandes, passes de solda sequenciais de uma maneira que constrói a superfície de metal base tensionado na direção longitudinal antes de depositar cordões de solda contra a face do metal base tensionado na direção através-espessura. Esse procedimento permite que uma parte significativa da retração de solda ocorra na ausência de restrição. (5) Em juntas de ângulo, quando possível, a preparação de junta biselada deveria ser no metal base tensionado na direção através-espessura de forma que o metal de solda se funda com o metal base em um plano na espessura do metal base ao grau máximo possível. (6) Juntas duplas em V- e de bisel duplo requerem deposição de muito menos metal de solda que juntas simples em V- ou em bisel simples, e portanto, reduzem a quantidade de retração de solda a ser acomodado à metade, aproximadamente. Quando possível, o uso de tais juntas pode ajudar. (7) Em ligações soldadas envolvendo várias juntas de metal base de diferentes espessuras, as juntas maiores deveriam ser soldadas primeiramente de forma que os depósitos de solda que podem envolver a maior quantidade de retração de solda podem ser concluídas sob condições da menor restrição possível. As juntas menores, embora soldadas sob condições de maior restrição, envolverão uma quantia menor de retração de solda a ser acomodada. (8) A área de membros aos quais soldas grandes irão transferir tensões na direção através-espessura deveria ser inspecionada durante o desenho para assegurar que retração de solda de junta não aplica deformações através-espessura no metal base com laminações ou grande inclusões pré-existentes (ver ASTM A 578). (9) Martelamento propriamente executado de passes de solda intermediários têm demonstrado que reduzem o potencial de ruptura lamelar. Passes de raiz não deveriam ser martelados para evitar a possibilidade de introduzir trincas nos passes de solda fina iniciais que podem não ser detectados e subsequentemente propagar-se pela junta. Passes intermediários deveriam ser martelados com uma ferramenta arredondada com vigor suficiente para deformar plasticamente a superfície do passe e alterar os resíduos de tração a tensões residuais compressivas, mas não tão vigorosamente de forma a causar uma superfície cortada ou sobreposições. Passes de acabamento não deveriam ser martelados. (10) Evitar o uso de metal de adição supra- resistente. (11) Quando possível, usar metal base com enxofre ou metal base baixo (< 0,006%) com propriedades através-espessura melhoradas. (12) Juntas críticas deveriam ser examinadas por RT ou UT depois que a junta resfriou à temperatura ambiente. (13) Se descontinuidades menores forem detectadas o Engenheiro deveria avaliar cuidadosamente se as descontinuidades podem ser deixadas sem reparo sem colocar em perigo a adequação para o serviço ou a integridade estrutural. A goivagem ou reparo de soldagem irão acrescentar ciclos adicionais de aquecimento e resfriamento e contração de solda sob condições de restrição que têm a possibilidade de serem mais severas que as condições sob as quais a junta foi
  • 446.
    C-2. PROJETO DECONEXÕES SOLDADAS AWS D1.1/D1.1M:2010 426 inicialmente soldada. Operações de reparo podem causar uma condição mais prejudicial. (14) Quando rupturas lamelares são identificadas e o reparo é considerado aconselhável, o trabalho não deveria ser conduzido sem antes revisar a WPS e fazer um esforço para identificar a causa do resultado insatisfatório. Uma WPS ou uma alteração no detalhe de junta podem ser requeridos. C-2.7.4 Combinações de Soldas. Soldas de filete depositadas sobre soldas em chanfro não aumentam diretamente a garganta efetiva da junta; portanto a resistência da junta pode não ser tomada como a soma algébrica da resistência da solda em chanfro e a resistência do filete. C-2.7.5 Contorno de Superfície de Junta de Topo, de Ângulo e em T-. Soldas de filete de reforço ou contorno servem como um propósito útil em juntas de ângulo e em T-, e em juntas de topo anexando partes de espessura ou largura desigual. Elas fornecem um filete que reduz a severidade da concentração de tensão que existiria na alteração geométrica de noventa graus na seção. C-2.7.6 Orifícios de Acesso de Solda. Orifícios de acesso de solda não são requeridos e sequer desejáveis para toda aplicação. No entanto, é importante reconhecer que qualquer junta transversal na flange da flange larga, H e seções transversais similares feitas sem o uso de um orifício de acesso de solda não pode ser considerada como uma junta soldada em chanfro CJP pré-qualificada. Isso é verdade, porque juntas soldadas em chanfro CJP pré-qualificadas são limitadas aos casos de elementos de placa simples para elementos de placa simples mostrados na Figura 3.4. A decisão de usar juntas CJP pré-qualificadas ou de usar juntas não pré-qualificadas sem orifícios de acesso depende da consideração de vários fatores que incluem, entre outros, os seguintes: (1) O tamanho dos membros sendo anexados. (2) Se a junta é uma solda de oficina ou de campo, isto é, se as partes podem ser posicionadas para soldagem de forma que soldagem suspensa possa ser evitada e filetes de reforço possam ser prontamente depositados no local de pico de concentrações de tensão. (3) A variação na restrição a retração de solda e a distribuição de tensão aplicada ao longo do comprimento de junta transversal devido à geometria das partes sendo anexadas. Por exemplo, a alta restrição devida a braçadeira de coluna na região da linha de centro da flange de coluna em comparação com a restrição mais baixa longe da linha de centro causa tensões residuais de soldagem e tensões aplicadas extremas na região de difícil soldagem no meio da flange da viga. (4) Se, no caso de geometria que permita restrição mais uniforme sem um "ponto difícil" ao longo do comprimento da junta, a probabilidade de número aumentado de descontinuidades de metal de solda internas pequenas, mas sem a grande descontinuidade de orifício de acesso de solda, pode fornecer uma junta de resistência mais alta. Por exemplo, testes de conexões de momento de placa de extremidade (Murray 1996) têm mostrado que juntas entre extremidades de viga e placas de extremidade feitas sem orifício de acesso de solda, mas com descontinuidades sem reparo na região da junção braçadeira a flange fornecem resistência mais alta que conexões similares feitas usando orifícios de acesso mas com menos descontinuidades internas. Pesquisa, pensamento e ingenuidade estão sendo direcionados para detalhes melhorados de soldagem de conexões de momento de viga-a-coluna. Projeto e detalhes de juntas alternativos para fornecer a resistência e adequação para serviço deveriam ser considerados quando são aplicáveis. Julgamento de engenharia é requerido. Quando orifícios de acesso de solda são requeridos, os requisitos mínimos de 5.17 aplicam-se. O tamanho mínimo requerido para fornecer espaçamentos para boa mão de obra e soldas boas pode ter um efeito significativo nas propriedades líquidas de seção de membros conectados. C-2.7.7 Soldas com Rebites ou Parafusos. Em edições anteriores do código, foi permitido dividir carga entre soldas w parafusos de alta resistência quando a junta foi projetada e os parafusos foram instalados como uma conexão resistente ao deslizamento. Limitações a tal uso são fornecidas nas Especificações para Juntas Estruturais Usando Parafusos ASTM A 325 ou A 490 do Research Council on Structural Connections (Especificação RCSC). Com base em pesquisa de Kulak e Grondin, (Strength of Joints that Combine Bolts and Welds; Geoffrey L. Kulak e Gilbert Y. Grondin, Engineering Journal, Second Quarter, 2003, página 89), a permissão foi retirada na versão 2000 da Especificação RCSC, e a Especificação RCSC não fornecia orientações. A AISC Specification for Structural Steel Buildings (março de 2005), seção J1.8, fornece nova orientação para a divisão de cargas entre parafusos e soldas. Parafusos não deveriam ser considerados como dividindo a carga em combinação com soldas, exceto conexões com parafusos instalados em orifícios padrão ou pequenas ranhuras transversais à direção da carga, que podem ser considerados como dividindo a carga com soldas de filete longitudinalmente carregadas. Em tais conexões, a resistência disponível dos parafusos deveria não ser tomada como maior que 50% da resistência disponível de parafusos tipo rolamento na conexão. Quando soldas de filete transversais são usadas em combinação com parafusos, a deformação no momento da fratura de solda é tal que quase nenhuma resistência de cisalhamento de parafuso é desenvolvida. C-2.8 Configuração e Detalhes de Junta-Soldas em Chanfro C-2.8.1 Transições de Espessura e Largura. Em aplicações de tensão, concentrações de tensão que
  • 447.
    C-2. PROJETO DECONEXÕES SOLDADAS AWS D1.1/D1.1M:2010 427 ocorrem em alterações na espessura do material ou largura de elementos tensionados, ou ambos, dependem de quão abrupta é a transição, com fatores de concentração de tensão variando entre 1 e 3. Em aplicações estaticamente carregadas, tais alterações geométricas não têm significância estrutural quando uma transição livre de entalhe é fornecida. O Engenheiro deveria considerar o uso de contornos adicionados a soldas de filete ou outros detalhes para melhorar a continuidade de fluxo de tensão em aplicações estáticas em locais tais como emendas de topo em cordas de tensão alinhadas axialmente de armações de intervalo longo, juntas submetidas a aplicações de temperatura baixa em que fratura quebradiça é uma preocupação ou outros locais de serviço severos ou de alta tensão. Provisões de fadiga fornecem os efeitos de descontinuidades geométricas em aplicações ciclicamente carregadas. C-2.9 Configuração e Detalhes de Junta-Juntas Soldadas em Filete C-2.9.1.1 Soldas de Filete Transversais. Porque juntas sobrepostas soldadas em filete carregadas transversalmente envolvem excentricidade, a força aplicada tende a abrir a junta e causar ação de alavancar na raiz da solda, como mostrado no Detalhe B da Figura C-2.7, a menos que restrita por uma força, R, mostrada no Detalhe A. O código requer que esse modo de ação seja prevenido por soldas de filete duplas ou outros meios. C-2.9.2 Soldas de Filete Longitudinais. A transferência de força por soldas de filete longitudinais sozinhas nas extremidades de membros causam um efeito conhecido como atraso de cisalhamento na região de transição entre a junta em que a tensão de cisalhamento está concentrada ao longo das arestas do membro ao local em que a tensão no membro pode ser considerada uniforme através da seção transversal. A disposição das soldas longitudinais relativas à forma da seção transversal afeta o projeto do membro assim como a resistência da conexão. Para o caso simples de seções transversais do tipo barra chata ou placa, a experiência, assim como a teoria, têm mostrado que os requisitos de 2.9.2 asseguram a adequação da conexão assim como as partes conectadas. Para outras seções transversais, a área efetiva do membro conectado depende da disposição das soldas conectadas na extremidade; portanto, deveria ser feita referência à especificação aplicável para projeto de membro e estrutura. C-2.9.3.1 Terminações de Solda de Filete-Geral. Na maioria dos casos, quando soldas de filete terminam nas extremidades ou lados de um membro, isso não tem efeito sobre a adequação de uma junta ao serviço, assim, esse é o caso padrão; no entanto, em várias situações a maneira de terminar é importante. Regras racionais separadas são fornecidas para casos individuais. C-2.9.3.2 Juntas Sobrepostas Sujeitas a Tensão. Quando uma junta é feita entre membros nos quais uma parte conectada estende-se além da aresta ou extremidade da outra parte, é importante que entalhes sejam evitados na aresta de uma parte sujeita a tensão calculada. Uma boa prática para evitar tais entalhes em locais críticos é abrir o arco para soldagem levemente para trás da aresta e então prosseguir com a deposição do cordão de solda na direção distante da aresta para estar protegido contra entalhes. C-2.9.3.3 Comprimento Máximo de Soldagem de Acabamento. Para ângulos de enquadramento e conexões simples de placa de extremidade nas quais a flexibilidade da conexão presumida no projeto do membro é importante, testes têm mostrado que a resistência estática da conexão não depende da presença ou ausência de soldagem de acabamento. Portanto, uma solda feita ao longo de uma perna proeminente da conexão (geralmente a solda vertical) pode ser interrompida perto da extremidade ou levada às extremidades de topo e fundo do ângulo ou retornadas levemente ao longo das extremidades horizontais. No entanto, se retornos forem usados, é importante assegurar que o comprimento seja limitado de forma que a flexibilidade da conexão não seja prejudicada. C-2.9.3.4 Soldas de Reforço Transversais. A experiência tem mostrado que quando reforços não são soldados às flanges, é importante interromper a solda reforço-a-braçadeira a uma distância curta da extremidade de solda braçadeira-a-flange. Se isso não for feito, uma leve torção da flange durante manuseio e remessa normais induzirá a tensões de flexão extremamente altas no comprimento de medidor extremamente curto entre a terminação da solda de reforço e a extremidade da solda braçadeira-a-flange. Alguns ciclos dessas tensões não calculadas na faixa inelástica iniciam trincas que podem em última instância propagar-se através da braçadeira ou flange em serviço. O comprimento não soldado não deve ser mais que 6 vezes a espessura da braçadeira para evitar ondulação na porção não reforçada da solda. C-2.9.3.5 Lados Opostos de um Plano Comum. Uma tentativa de amarrar duas soldas de filete depositada em lados opostos de um plano comum de contato entre duas partes poderia resultar em entalhes ou máscaras de acabamento pobre. C-2.12 Membros Construídos C-2.12.2.1 Geral. Independentemente dos requisitos para soldagem suficiente para assegurar que as peças ajam em uníssono, um espaçamento máximo para soldas de filete descontínuas é especificado para assegurar ajuste de juntas que irão permitir pintura para selar partes não soldadas da junta e para prevenir "acolchoamento" não visível de metal base entre soldas para juntas que são protegidas contra corrosão por anexação am uma construção. C-2.12.2.2 Membros de Compressão. Os critérios para espaçamento de soldas de filete descontínuas
  • 448.
    C-2. PROJETO DECONEXÕES SOLDADAS AWS D1.1/D1.1M:2010 428 anexando placas de membros anexadas sujeitas a compressão são derivadas da teoria clássica de ondulação de placas elásticas e são consistentes com os critérios fornecidos em AISC Specification for Design Fabrication and Erection of Structural Steel Buildings. C-2.12.2.3 Aço sem Pintura Exposto às Intempéries. Para aço sem pintura exposto às intempéries que será exposto à corrosão atmosférica, com base em experiência e teste, um espaçamento mais próximo é requerido para fornecer resistência a volume de produtos de corrosão entre partes, causando "acolchoamento" não visível entre soldas e o potencial de iniciar trincas nas terminações de solda. C-2.13 Geral C-2.13.1 Aplicabilidade. As provisões da Parte C do código aplicam-se a estruturas e ligações soldadas sujeitas a muitos ciclos de aplicação, remoção e reaplicação da carga viva na faixa elástica de tensão. Esse tipo de carga é geralmente designado fadiga de alto ciclo. As tensões máximas calculadas de projeto permitidas sob o código estão na faixa de 0,60 Fy ou como similarmente permitido por outros códigos e especificações padrão invocados. Assim, a faixa máxima de tensão devida à aplicação e remoção de carga viva é geralmente alguma fração desse nível de tensão. Embora essas condições não tenham sido adotadas para o propósito de limitar o âmbito de aplicabilidade das provisões do código, elas estabelecem fronteiras naturais que deveriam ser reconhecidas. O projeto para resistência à fadiga não é normalmente requerido para estruturas de construção; no entanto, casos envolvendo carga cíclica que pode causar início de trinca e propagação de trinca de fadiga incluem entre outros o seguinte: (1) Membros suportando equipamento de elevação. (2) Membros suportando cargas de tráfico de laminação. (3) Membros sujeito a vibração harmônica induzida por vento. (4) Suporte para maquinaria recíproca. Para colocar alguma perspectiva no âmbito de aplicabilidade, por exemplo, se a faixa de tensão no metal base conectado de um detalhe soldado relativamente sensível (a extremidade de uma placa de cobertura de comprimento parcial) devido a ciclos de aplicação e remoção de carga viva completa é 30 ksi [210 MPa], a vida prevista até falha por fadiga é 36.000 ciclos (4 aplicações por dia por 25 anos). Para o mesmo detalhe, se a faixa de tensão é menos que 4,5 ksi [32 MPa], vida infinita seria esperada. Portanto, se os ciclos de aplicação de carga viva completa são menos que alguns milhares de ciclos ou a faixa de tensão resultante é menor que a faixa limite de tensão, a fadiga não precisa ser uma preocupação. C-2.14 Limitações C-2.14.2 Fadiga de Ciclo Baixo. Como a carga de terremoto envolve um número relativamente baixo de ciclos de alta tensão na faixa inelástica, confiar nas provisões dessa Parte C para projeto para carga de terremoto não é apropriado. C-2.14.4 Membros Redundantes e Não Redundantes. O conceito de reconhecer uma distinção entre membros e detalhes redundantes e não redundantes não é baseada na consideração de qualquer diferença no desempenho de fadiga de qualquer membro ou detalhe dado, mas antes na consequência de falha. Antes da adoção de AASHTO/AWS D1.5, Especificações AASHTO forneciam critérios para fatura em membros críticos que incluíam metal base e requisitos de inspeção especiais, mas que incorporavam por referência curvas de faixa de tensão de tensão reduzida permissível, como em Dl.l Cláusula 9 (interrompida em 1996). As curvas de faixa de tensão reduzida permissível, designadas para estruturas não redundantes, foram derivadas por limitar arbitrariamente as faixas de tensão de fadiga a aproximadamente 80% das curvas de faixa de tensão para membros e detalhes redundantes. Com a adoção de AASHTO/AWS D1.5, referência ao Código AWS D1.1 Cláusula 9 (interrompida em1996) para tensões permissíveis e tensões e faixas de tensão foi eliminada e alterada para especificações de projeto AASHTO. Subsequentemente, em AASHTO foi decidido que faixas de tensão permissível específicas que eram apenas 80% do meio menos 2 curvas de desvio padrão para dados de teste de detalhe de fadiga, além de metal base e requisitos de inspeção especiais, constituindo um duplo conservadorismo. Assim, nas Especificações AASHTO LRFD atuais para o projeto de pontes, as faixas de tensão permissíveis abaixadas para projeto de membros e detalhes não redundantes foram eliminados enquanto metal base e requisitos de inspeção especiais foram retidos. C-2.15 Cálculos de Tensões C-2.15.1 Análise Elástica. Os critérios contidos nessa Tabela 2.5 são baseados no teste de fadiga de espécimes típicos de tamanho completo dos casos apresentados. Os efeitos de concentrações de faixa geométrica local são considerados pelas categorias de tensão. C-2.16 Tensões Permissíveis e Faixas de Tensão C-2.16.2 Faixa de Tensão Permissível. Os critérios de curvas de faixa de ciclo de vida fornecidos pelas Fórmulas de (2) a (4) e assinalados graficamente na Figura 2.11 foram desenvolvidos através de pesquisa patrocinada pelo National Cooperative Highway Research Program sobre detalhes reais que incorporaram descontinuidades geométricas realísticas
  • 449.
    C-2. PROJETO DECONEXÕES SOLDADAS AWS D1.1/D1.1M:2010 429 tornando impróprio amplificar tensões calculadas para considerar o efeito de entalhe. Essa pesquisa é publicada como relatórios de pesquisa 102 e 147 "Efeitos de Ligações Soldadas na Resistência de Vigas" e "Resistência de Vigas de Aço com Reforços e Anexos Soldados." Pesquisa subsequente nos Estados Unidos e em outros países em outros detalhes reais suporta casos contidos na Tabela 2.5 mas não contidos no programa de teste NCHRP. Quando um elemento de placa que está conectado por uma solda transversal CJP ou PJP, ou por um par de soldas de filete transversal em lados opostos de uma placa, é sujeito a carga ciclicamente aplicada, as extremidades das soldas transversais são geralmente o local crítico para início de trinca no metal base conectado. A faixa de tensão crítica para início de trinca nesse local é a mesma para cada um dos tipos de junta e pode ser determinada pela Fórmula (2), e critérios Categoria C. Por outro lado, se uma solda transversal é uma solda PJP ou um par de soldas de filete, o potencial para início de trinca a partir da raiz das soldas, assim como início de trinca a partir da extremidade oposta da solda se o metal base ao qual a carga é entregue é sujeito a tensão de tração de flexão, também deve ser considerado. A faixa máxima de tensão para a junta para considerar trinca a partir da raiz é determinada pela multiplicação do critério de faixa de tensão permissível para trinca a partir da extremidade por um fator de redução. O tamanho relativo da dimensão de espessura não soldada da junta à espessura da placa é o parâmetro essencial no fator de redução incorporado na Fórmula (4). Para o caso de um par de soldas de filete em lados opostos da placa, 2a/ torna-se unidade e a fórmula de fator de redução reduz a Fórmula (5) (ver Referência 32). C-2.17 Detalhamento, Fabricação e Ereção C-2.17.6 Terminações de Soldas de Filete. Em suportes de ângulo soldado em filete, sedes dos ângulos de viga, ângulos de enquadramento e conexões similares, nos quais a carga aplicada tende a separar as peças conectadas e aplicar tensão de tração na raiz da solda, a solda é requerida a retornar para proteger a raiz no começo da solda contra início de trinca. C-2.20 Geral (Conexões Tubulares) As provisões tubulares desse código originalmente evoluíram de um histórico de práticas e experiência com plataformas fixas marítimas de construção tubular soldada. Como pontes, estas estão sujeitas a uma quantia moderada de carga cíclica. Como estruturas de construção convencionais, elas são redundantes a um grau que evita que falhas isoladas de junta sejam catastróficas. Os requisitos da Cláusula 2, Parte D, têm a intenção de ser aplicáveis geralmente a uma ampla variedade de estruturas tubulares C-2.21 Tensões Permissíveis (Tubulares) Essa parte que lida com tensões permissíveis para seções tubulares inclui requisitos para seções quadradas e retangulares assim como tubos circulares. Em tipos comumente usados de conexões tubulares, a solda pode ela mesma não ser o fator limitante da capacidade de junta. Tais limitações como falha local (puncionamentopuncionamento), colapso geral do membro principal e ruptura lamelar são discutidos porque não são adequadamente abordados em outros códigos. C-2.21.1 Tensões de Metal Base. Espessura/diâmetro de limitação e razões de largura/espessura dependem da aplicação. Com referência à Tabela C-2.1, o lado esquerdo lida com assuntos de projeto de conexão cobertos pelo código AWS D1.1. As três primeiras colunas delimitam membros sólidos para os quais regras simplificadas de projeto se aplicam; além desses limites cálculos mais detalhados dados no código devem ser realizados. Os limites para projetar membros contra ondulação local em vários graus de plasticidade são mostrados no lado direito. Esses são um amálgama de requisitos API, AISC, e AISI. Naturalmente, requisitos da especificação reguladora de projeto tomaria precedência aqui. C-2.21.3 Tensões de Solda. As unidades de tensões permissíveis em soldas são apresentadas na Tabela 2.6. Essa tabela é uma versão consolidada e condensada que lista para cada tipo de solda a unidade de tensão permissível para aplicação tubular e o tipo de tensão que a solda irá sofrer. O nível de resistência de metal de solda também é especificado. Essa tabela é apresentada no mesmo formato que a Tabela 2.3. C-2.21.6.2 Categorias de Tensão de Fadiga. A base para as categorias de tensão de fadiga podem ser encontradas na referência 1. Essas foram derivadas a parir dos dados sobre seções circulares e fornecem apenas orientação aproximada para seções de caixa. As categorias de tensão e curvas de fadiga foram revisadas para serem consistentes com provisões atuais de estrutura ciclicamente carregada 2.16.2 e a última revisão de API RP 2A (Referência 9). A parte inclinada da maioria das curvas mais recentes foi retida. Seguindo API, as curvas X e Y foram divididas em duas curvas cada. A curva superior representa espécimes de pequena escala de qualidade de laboratório no banco de dados histórico (pré-1972), enquanto as curvas mais baixas representam testes em larga escala tendo soldas sem controle de perfil. Ao interpretar esse último, edições anteriores dos códigos americanos enfatizaram o perfil de solda enquanto regras britânicas propostas (Referência 12) enfatizam efeitos de espessura. A hipótese atual é de que tanto perfil de solda quanto efeito de tamanho são
  • 450.
    C-2. PROJETO DECONEXÕES SOLDADAS AWS D1.1/D1.1M:2010 430 importantes para compreender desempenho de fadiga, e de são inter-relacionados. Essa é também uma área em que projeto e soldagem não podem ser separados, e 2.21.6.7 faz referência a um conjunto consistente de práticas de controle de perfil de solda "padrão" e seleções de categoria de fadiga, como uma função de espessura. Perfis e retificações aprimoradas são discutidos em 2.21.6.6 assim como martelamento como um método alternativo de aprimoramento de fadiga. Os limites de resistência na maioria das curvas foram atrasados além dos dois milhões de ciclos tradicionais. O banco de dados histórico não forneceu muita orientação nessa área, enquanto dados mais recentes a partir de espécimes maiores soldados mostram claramente que a parte inclinada deveria ser continuada. Os cortes são consistentes com aqueles de estruturas ciclicamente carregadas e serviço atmosférico. Para carga aleatória em um ambiente marítimo, a API adotou um corte de 200 milhões de ciclos; no entanto, essa necessidade não se aplica a aplicações AWS. Com os cortes revisados, um único conjunto de curvas pode ser usado para ambas as estruturas redundantes e não redundantes quando as provisões 2.21.6.5 são levadas em conta. Para Categoria K (puncionamentopuncionamento para conexões em K-), a curva de projeto empírica foi derivada de testes envolvendo cargas axiais em membros de ramificação. A fórmula de puncionamentopuncionamento baseada sobre considerações brutas de estática (agindo VP em 2.25.1.1) e geometria (2.24.3) nem sempre produz resultados consistentes com o que é sabido sobre a influência de vários modos de carga em pontos de aquecimento de tensão localizados, particularmente quando flexão está envolvida. Como alguns parâmetros relevantes (por exemplo, a folga entre cintas) não estão incluídos, a aproximação simplificada a seguir parece ser mais apropriada para conexões típicas com 0,3 ≤ β ≤ 0,7. Nessas fórmulas, as tensões nominais de membro de ramificação fa, fby, fbz correspondem aos modos de carga mostrados na Figura C-2.8. O fator r x no f foi introduzido para combinar as curvas anteriores K e T em uma única curva. Outros termos são ilustrados na Figura C-2.12. C-2.21.6.3 Limitação Básica de Tensão Permissível. Dados de fadiga caracteristicamente mostram uma grande quantia de dispersão. As curvas de projeto foram desenhadas para cair no lado seguro de 95% do ponto de dados. Os critérios de projeto da AWS são apropriados para estruturas redundantes e livres de falhas nas quais falha de fadiga localizada de uma única conexão não leva imediatamente a colapso. Para membros críticos cuja falha seria catastrófica, a razão de dano de fadiga cumulativa, D, como definido em 2.21.6.4, deve ser limitada a um valor fracional (isto é, 113) para fornecer um fator de segurança acrescentado. A declaração presume que não há polarização conservadora ou fator de segurança oculto no espectro de cargas aplicadas usado para análise de fadiga (muitos códigos incluem tal polarização). As Referência 8 e 9 discutem aplicação desses critérios para estruturas marítimas, inclusive modificações que podem ser apropriadas para fadiga de alto ciclo sob carga aleatória e ambientes corrosivos. C-2.21.6.6 Melhoria de Comportamento de Fadiga. O comportamento de juntas soldadas em bruto pode ser melhorado ao reduzir o efeito de entalhe na extremidade da solda, ou ao reduzir tensões residuais de tração, nenhum dos quais está incluído na faixa de deformação do ponto de aquecimento medido que projetistas usam. Vários métodos para aprimorar o comportamento de fadiga de juntas soldadas, como discutido na Referência 11, são como segue: aprimorar o perfil de soldagem em bruto (inclusive o uso de eletrodos especiais projetados para fornecer uma transição suave na extremidade da solda), retificação completa de perfil, retificação de extremidade de solda, novo derretimento de extremidade de solda (preparação GTAW ou preparação de arco de plasma), martelamento e rebitagem. Uma prática de indústria marítima há muito estabelecida (mas não usada universalmente) para perfil de solda aperfeiçoado é mostrada na Figura C-2.9. O perfil desejado é côncavo, com um raio mínimo de metade da espessura do membro de ramificação e funde-se suavemente com o metal base adjacente. Alcançar o perfil de soldagem em bruto desejado geralmente requer a seleção de materiais de soldagem com boas características de perfil e umedecimento, assim como os serviços de um especialista em fechamento que domina a técnica de passe de lavagem de passe estreito para várias posições e geometrias a serem encontradas. Dificuldades em alcançar isso são frequentemente experimentadas com processos de alta taxa de deposição nas posições suspensa e vertical. Inspeção do perfil de solda acabado é na maior parte visual, com o teste de disco sendo aplicado para resolver casos limite. Entalhes relativos ao perfil de solda desejado são considerados inaceitáveis de um arame de 0,04 in [1 mm] pode ser inserido entre o disco do raio especificado e a solda, tanto na extremidade da solda como entre passos. Edições anteriores de AWS D1.1 continham um requisito de perfil de solda menos estrito. Perfis de solda surpreendentemente pobres podiam passar no teste, com o efeito relativo de efeito de entalhe tornando-se gradativamente mais severo conforme a espessura do membro aumentava. Pesquisas europeias recentes têm mostrado que o D1.1 anterior era inadequado para distinguir entre conexões tubulares soldadas que atendem o desempenho de Classificação
  • 451.
    C-2. PROJETO DECONEXÕES SOLDADAS AWS D1.1/D1.1M:2010 431 de Fadiga X1 da AWS, e aqueles que não (Referências 11 e 12). Considerações mecânicas de fratura e de análise de tensão de entalhe, enquanto em conformidade com a inadequação de requisitos antigos de perfil para seções pesadas, também indica que os requisitos mais fechados da Figura C-2.9 são mais efetivos em manter desempenho de fadiga de Classe X1 sobre uma larga faixa de espessuras (Referência 13). A Figura C-2.9 também sugere o uso de retificação leve para corrigir defeitos de extremidade, tais como profundidade de entalhe ou mordedura excessivas. Uma vez que comece a retificação, observe que a profundidade de entalhe permissível é reduzida a 0,01 in [0,25 mm]; meramente aplainando os topos de passes de solda individuais, enquanto deixa gargantas afiadas no processo, faz pouco para melhorar o desempenho de fadiga, mesmo que atendesse a letra do teste de disco. Como as extremidades de soldas frequentemente contêm trincas microscópicas e outros defeitos similares a trincas, MT é necessário para assegurar que esses defeitos foram eliminados. Uso criterioso de retificação para resolver indicação MT, frequentemente feito rotineiramente como parte da inspeção, também melhora o perfil de solda. Dependendo das circunstâncias, pode ser mais rentável realizar a retificação fina de todo o perfil de solda. Isso evitaria o uso de técnicas especiais verificação de perfil de soldagem, retificação corretiva e MT, como descrito acima, para controlar o perfil de soldagem em bruto. Pra conexões tubulares, com múltiplos passes de acabamento côncavos, as trincas de fadiga podem começar no entalhe entre passes; aqui, apenas a retificação de extremidade de solda não é tão efetiva quanto os perfis de solda de filete plana que foram usados em grande parte da pesquisa. Técnicas para derreter novamente extremidade de solda podem melhorar a geometria do entalhe na extremidade de solda, e têm mostrado em laboratório que melhoram o desempenho de fadiga de conexões soldadas. No entanto, a menos que seja cuidadosamente controlado, o ciclo rápido de aquecimento e resfriamento tende a produzir HAZs inaceitavelmente duras, com possível suscetibilidade a trinca de corrosão de tensão em ambientes agressivos (por exemplo, água do mar). Martelamento com uma ferramenta arredondada também melhora a geometria da extremidade de solda, isso adicionalmente induz a tensão residual compressiva na camada de superfície em que trincas de fadiga seriam de outra forma iniciadas. Deformação excessiva do metal base pode torná-lo suscetível a deformação quebradiça por causa da soldagem próxima subsequente. Também, camadas de superfície também podem ser manchadas de forma a obscurecer ou obliterar trincas pré-existentes; por isso os requisitos para MT. Rebitagem é menos radical em sua deformação e efeitos, mas também menos efetiva em melhorara geometria. Deveria se enfatizado que, para muitas aplicações de estruturas tubulares, as Classificações X2, K2 e ET de desempenho de fadiga serão suficientes, e as medidas anteriores tomadas para melhorar desempenho de fadiga não são requeridas. Além do mais, as práticas "padrão" de perfil de solda descritas em 3.13.5 podem alcançar as Classificações X1, K1 e DT de desempenho de fadiga pra todas as seções, exceto as mais pesadas. C-2.21.6.7 Efeitos de Tamanho e Perfil. O feito adverso de tamanho na fadiga de conexões soldadas é bem documentado (Referências recentes 11, 12 e 13, assim como muitas anteriores). Para juntas soldadas com um entalhe agudo na extremidade da solda, aumentar em escala o tamanho da solda e o tamanho do entalhe resulta em diminuição de desempenho de fadiga. Quando a aplicação excede a escala do banco de dados, efeito de tamanho deveria ser considerado no projeto. A Referência 12 sugere diminuição da resistência de fadiga em proporção a [ ( ) ( ) ] Outras autoridades (Referência 14) indicam um efeito de tamanho mais moderado, aproximando um exponente de 0-10. O efeito de entalhe geométrico largamente responsável pelo efeito de tamanho em soldas não está presente em perfis completamente retificados e é relativamente menor para aqueles perfis que fundem suavemente com o metal base adjacente (Categorias de Fadiga B e C1). Os limites de tamanho declarados (além dos quais estamos fora do banco de dados histórico) para a maior parte das outras categorias são similares àqueles citados na Referência 12, exceto que as dimensões em polegadas foram arredondadas. Os maiores limites de tamanho para as Categorias X2, K2 e DT refletem o fato d que essas curvas S-N já foram desenhadas para ficar aquém dos dados de teste de larga escala recentes. A Referência 13 discute o papel de efeito de tamanho relativo a perfil de solda, em vários níveis de desempenho de fadiga. As práticas "padrão" de perfil de solda para conexões em T-, Y- e K- referidas em 2.21.6.7 variam com espessura de forma a definir dois níveis de desempenho de fadiga que são independentes de tamanho. No entanto, quando um perfil inferior é estendido além se sua faixa padrão, o feito de tamanho (redução em desempenho) entraria em ação. Perfis de solda "melhorados" que atendem os requisitos de 2.21.6.6(1) mantêm o efeito de entalhe constante sobre uma larga faixa de espessuras, dessa forma mitigando o efeito de tamanho. O perfil de superfície lisa de soldas completamente retificadas também não exibe efeitos de tamanho. Como martelamento apenas melhora um volume relativo limitado da junta soldada, seria esperado que o efeito de tamanho se mostrasse logo se o martelamento fosse a única medida tomada; no entanto, o martelamento não deveria incorrer em penalidade de efeito de tamanho se for feito em acréscimo a controle de perfil. O efeito de tamanho também pode se exibir em comportamento estático de resistência de ruptura, desde que as regras de projeto sejam baseadas em parte em
  • 452.
    C-2. PROJETO DECONEXÕES SOLDADAS AWS D1.1/D1.1M:2010 432 testes para fratura de tração. Para conexões tubulares em T-, Y- e K- envolvendo aços de alta resistência de tenacidade ao entalhe baixa ou desconhecida, as seleções de perfil Nível I são recomendadas em preferência a entalhes maiores permitidos pelo Nível II. C-2.25 Limitações da Resistência de Conexões Soldadas Um número de modos de falha únicos é possível em conexões tubulares. Em acréscimo às verificações usuais em tensão de solda fornecidas na maioria dos códigos de projeto, o projetista deveria verificar o seguinte: Circular Caixa (1) Falha local* 2 25 1 1 2 25 2 1 (2) Colapso geral 2 25 1 2 2 25 2 2 (3) Falha progressiva (descompactante) 2 25 1 3 2 25 2 3 (4) Problemas materiais 2 27 0 0 2 27 1 5 * Conexões sobrepostas são abordadas em 2.25.1.6 e 2.25.2.4, respectivamente. C-2.25.1.1 Falha Local. Os requisitos de projeto são declarados em termos de tensão nominal de puncionamentopuncionamento (ver Figura C-2.10 para o conceito simplificado de puncionamentopuncionamento). A situação de tensão localizada real é mais complexa que o conceito simples sugere e inclui flexão de concha e tensão de membrana também. Qualquer que seja o modo real de falha de membro principal, o Vp permissível é uma representação conservadora da tensão de cisalhamento média em falha em testes estáticos de conexões tubulares soldadas simples, inclusive um fator de segurança de 1,8. Para dados de histórico, o usuário deveria consultar Referências 1-6. O tratamento de seções de caixa tem sido feito de forma tão consistente quanto possível com o de seções circulares. Derivação do VP básico permissível para seções de caixa inclui um fator de segurança de 1,8, baseado em análises de limite usando a resistência à tração de ruptura, que foi assumida em 1,5 vezes o limite mínimo especificado. É por isso que a (alfa) na Tabela 2.10 limita Fy na fórmula de projeto para puncionamentopuncionamento para 2/3 da resistência à tração. Uma redistribuição favorável de carga também foi assumida quando apropriado. Deveria ser esperado que ocorra flexibilidade dentro dos níveis de carga permissível. Flexibilidade consideravelmente geral com deflexão excedendo 0,02D pode ser esperada em cargas excedendo 120%-160% da estática permissível. Alternativas à abordagem de puncionamentopuncionamento para tamanho de conexões tubulares podem ser encontradas ne literatura (por exemplo, Referência 3). No entanto, tais regras empíricas, particularmente equações de projeto que não são concluídas dimensionalmente, deveriam ser limitadas em aplicação às configurações e tamanhos (e unidades) de tubo das quais derivam. Na edição de 1984, foram feitas mudanças substanciais nos requisitos de puncionamentopuncionamento para seções circulares, para atualizá-los. Essas incluem: (1) Eliminação de Ka e Kb da fórmula para Vp atuante. Embora lógico do ponto de vista de geometria e estática, produz tendências impróprias em comparação a dados de teste na resistência de conexões tubulares. (2) Novas expressões para o Vp básico permissível e um novo modificador Qq que fornece resultados numericamente similares àqueles na Referência 2. (3) Introdução do parâmetro oval de corda, α, que combina resultados disponíveis a partir de juntas de plano único e oferece uma extensão promissora para juntas multiplanares (Referência 3). (4) Uma nova expressão para Qf, baseada nos testes recentes de Yura (Referência 4). (5) Interação não linear entre carga axial e flexão no membro ramificado, baseado no comportamento totalmente plástico de seções tubulares (Referência 5). A Figura C-2.11 mostra a confiabilidade de novos critérios de puncionamentopuncionamento baseados em alfa computado, como um histograma da razão de teste de resistência de ruptura (teste P) para a permissível. O banco de dados da Referência 6 foi usado. Testes impróprios foram excluídos, e Fy efetivo em conformidade com a regra 2/3 foram estimados, como descrito em IIW-doc XV-405-77. Os resultados de testes agrupam-se bem justo no lado seguro do fator de segurança de resistência de ruptura nominal de 1,8. Usando um formato de índice de segurança lognormal, a resistência de ruptura mediana para juntas falhando por colapso plástico é desvios padrão de 3,45 acima da carga de projeto, comparável a índices de segurança de 3 a 4 para conexões em outros tipos de construção. Ao discriminar entre diferentes tipos de juntas, os novos critérios alcançam economia geral similar e maior segurança que os critérios menos precisos que eles substituem. O fator de segurança e índice de segurança aparentemente grandes mostrados para testes de tensão é polarizado pelo grande número de pequenos tubos no banco de dados. Se apenas tubos com tc = 0,25 in [7 mm] são considerados, o fator principal de segurança cai para 3,7; para tc = 0,5 in [13 mm], o fator de segurança é apenas 2,2. Considerando a singularidade (entalhe agudo) na extremidade de soldas típicas e o efeito de tamanho desfavorável em falhas de fratura controlada, não é permitido bônus para carga de tensão. Na edição de 1992, o código também incluiu critérios de projeto de conexão tubular em formato de resistência de ruptura, subcláusula 2.25.1.1(2) para seções circulares. Isso foi derivado dos, e pretendeu ser equivalente aos, critérios anteriores de puncionamentopuncionamento. A assunção de parede fina foi feita (isto é, sem correção tb/td) e a conversão para flexão usa módulos de seção elástica.
  • 453.
    C-2. PROJETO DECONEXÕES SOLDADAS AWS D1.1/D1.1M:2010 433 Quando usado no contexto de AISC-LRFD, com um fator de resistência de 0,8, isso é nominalmente equivalente ao fator de segurança de projeto de tensão permissível (ASD) de 1,8 para estruturas que tenham 40% de carga morta e 60% de cargas de serviço. A alteração de fator de resistência em cisalhamento material foi feita para manter essa equivalência. LRFD cai no lado seguro de ASD para estruturas que tenham baixa proporção de carga morta. Critérios AISC para membros de tensão e compressão parecem fazer a equivalência de compensação em cerca de 25% da carga morta; assim os critérios LRFD fornecidos aqui são nominalmente mais conservadores para uma parte maior da população de estruturas. No entanto, desde que a correção tb/db para puncionamentopuncionamento não seja feita agindo Vp τsin f n( -tb/db). O formato de puncionamentopuncionamento ASD também contém conservadorismo extra. A Figura C-2.11 indica um índice de segurança de 3,45, apropriado para seleção do metal de junta como um membro (índice de segurança é a margem de segurança do critério de projeto, inclusive polarização oculta, expressa no desvio padrão de incerteza total). Para maiores comparações, o Comitê sobre Estruturas Tubulares ASCE na Referência 2 derivou um fator de resistência de 0,81 para critérios de projeto de conexão tubular similar baseada em Yura, tendo como meta um índice de segurança de 3,0. Como os critérios de falha local em 2.25 são usados para selecionar o membro ou corda principal, a escolha de índice de segurança é comparada àquela usada para projetar outros membros estruturais - ao invés dos valores mais altos frequentemente citados para material de conexão como rebites, parafusos ou soldas de filete, que levantam questões adicionais de confiabilidade, por exemplo, ductilidade e mão de obra locais. Para estruturas marítimas , tipicamente dominadas por carga ambiental que ocorre quando são automatizadas, o esboço de 1986 de API RP2A-LRFD propôs fatores de resistência mais liberais de 0,90 a 0,95, correspondendo a um índice de segurança de meta reduzido de 2,5 (na verdade, 2,1 para membros de tensão). API também ajustou seus critérios de projeto de tensão para refletir as razões típicas de benefício tb/td. No Canadá (Referência 21), usando esses fatores de resistência com fatores de carga ligeiramente diferentes, uma diferença de 4,2% nos resultados gerais de fator de resistência. Isso está no âmbito de precisão de calibragem. C-2.25.1.2 Colapso Geral. Além de falha localizada do membro principal, que ocorre na proximidade de soldado-na-ramificação, um modo mais amplo de falha de colapso geral pode ocorrer. Em membros cilíndricos, isso ocorre por falha plástica oval geral na concha cilíndrica do membro principal. Em seções de caixa, isso pode envolver prejuízo de braçadeira ou ondulação das paredes de lado do membro principal (ver Referência 15). C-2.25.1.3 Distribuição Desigual de Carga (Dimensionamento de Solda). A distribuição elástica inicial de transferência de carga por toda a solda em uma conexão tubular é altamente não uniforme, com carga de linha de pico (kpsi/in ou MPa/mm) frequentemente sendo um fator de dois ou três mais altos que este que indicam a base de seções, geometria e estáticas nominais, como em 2.24.3. Alguma flexibilidade local é requerida para conexões tubulares para redistribuir isso e alcançar sua capacidade de projeto. Se a solda é um elo fraco no sistema, ela pode "descompactar" antes que a distribuição possa acontecer. Os critérios fornecidos no código pretendem prevenir essa descompactação, aproveitando-se dos fatores mais altos de segurança em tensões de solda permissível. Por exemplo, a resistência de ruptura de carga de linha de uma solda de filete de 0,7t feita com eletrodos E70XX é 0,7t (2,67 x 0,3 x 70) = 39t, adequada para combinar o limite de escoamento de material de ramificação de aço moderado. Para outro exemplo, se a carga de linha de pico é realmente duas vezes a nominal, projetado para 1,35 vezes a carga de linha nominal fornecerá à junta um fator de segurança de 1,8, quando a resistência da solda é 2,67 vezes sua tensão permissível. Regras IIW e cálculos de resistência com base em LRFD sugerem que tamanhos de solda maiores correspondentes são requeridos, por exemplo, 1,0t ou 1,2t (1,07t no esboço Eurocode). Dado essa fácil maneira de contornar o problema, não há muitos testes para validar a lógica anterior da AWS para soldas menores. C-2.25.2 Conexões de Caixa em T-, Y-, e K-. Em D1.1-90 e edições anteriores do código, o tratamento de seções de caixa foi feito de forma tão consistente quanto possível com o de seções circulares. Derivação do puncionamentopuncionamento básico permissível Vp para seções de caixa inclui um fator de segurança de 1,8, baseado em uma simples análise de limite de linha de ruptura, mas usando a resistência à tração de ruptura, que foi assumida em 1,5 vezes o limite mínimo especificado. É por isso que Fy na fórmula de projeto para puncionamentopuncionamento foi limitado a 2/3 vezes a resistência à tração. Uma redistribuição favorável de carga também foi assumida quando apropriado. Deveria ser esperado que ocorra flexibilidade dentro dos níveis de carga permissível. Flexibilidade consideravelmente geral com distorção de conexão excedendo 0,02 D pode ser esperada em cargas excedendo 120%-160% da estática permissível. Uma abordagem racional para a resistência de ruptura de conexões de caixa escalonadas pode ser tomada, usando o teorema superior vinculado de análise de limite (ver Figura C-2.13) e padrões de linha de ruptura (similar àqueles mostrados na Figura C-2.14). Vários padrões de ruptura para falha plástica de face de corda deveriam ser assumidos para encontrar a capacidade mínima computada, que pode ser igual a ou maior que o verdadeiro valor. Ângulos de ventilação (como mostrado para conexão em T-) frequentemente produzem capacidades mais baixas que ângulos simples
  • 454.
    C-2. PROJETO DECONEXÕES SOLDADAS AWS D1.1/D1.1M:2010 434 como mostrado para outros casos. Fatores de projeto sugeridos, dados na Tabela C-2.2, são consistentes com a forma como tiramos proveito de endurecimento de deformação, redistribuição de carga, etc., ao usar testes para falha como a base para critérios empíricos de projeto. Em geral, a capacidade será descoberta como uma função dos parâmetros de topologia não dimensionáveis β, η, e ξ (definidos na figura) assim como a espessura-quadrada de corda (correspondendo a τ e γ no formato de puncionamentopuncionamento). Para β muito grande (acima de ,85) e conexões em K- com folga próxima de zero, análise de linha de ruptura indica capacidade de conexão extremamente alta e impraticável. Em tais casos, outras provisões limitadoras baseadas em falha material de cisalhamento das regiões de reforço e capacidade reduzida para as regiões mais flexíveis (isto é, largura efetiva) também devem ser observadas e verificadas. Embora os velhos critérios AWS abordassem essas considerações, (Referência 18), para flexão assim como para carga axial (Referência 19), mais expressões autoritárias representando um banco de dados muito maior têm sido desenvolvidos através dos anos pelo CIDECT (Commite International pour le Developpement et I’Etude de la Construction Tubulaire) (Referência 20) e por membros do Subcomitê XV-E de IIW (Referência 24). Esses critérios foram adaptados para projeto de estado limite de estruturas de aço no Canadá (Packer et al Referência 21). O código canadense é similar ao formato AISC- LRFD. Na edição de 1992, esses critérios atualizados foram incorporados no código AWS, usando ao formato de resistência de ruptura espessura-quadrada e fatores de resistência de Packer, quando aplicável. C-2.25.2.1 Falha Local. Fatores de carga variam de equação a equação para refletir as quantias diferentes de polarização e dispersão aparentes quando essas equações são comparadas a dados de teste (Referência 21). Por exemplo, a equação para falha plástica de face de corda de conexões em T-, Y- e transversais são baseadas em análise de linha de ruptura, ignorando a resistência de reserva que vem do endurecimento de deformação; a polarização fornece o fator de segurança com um de unidade. A segunda equação, para conexões de folga em K- e N- foi empiricamente derivada, tinha menos polarização oculta no lado seguro e causa um fator de resistência mais baixo. Na transição entre conexões de folga e conexões de sobreposição, há uma região para a qual não são dados critérios. (ver Figura C-2.12). A prática de detalhamento de estrutura marítima fornece tipicamente uma folga mínima "g" de 2 in [50 mm]. ou uma sobreposição mínima "q" de 3 in [75 mm], para evitar interferência de solda. Para conexões de caixa de diâmetro menor, as limitações são estabelecidas em relação às proporções do membro. Essas limitações também servem para evitar o caso de tocar extremidades para conexões de caixa escalonadas, nas quais um caminho de carga desproporcionalmente rígido é criado que não pode lidar com toda a carga que atrai, possivelmente levando a falha progressiva. C-2.25.2.2 Colapso Geral. Para evitar uma adaptação um tanto estranha de ondulação de coluna permissível para o problema de prejuízo de braçadeira de seção de caixa (por exemplo, Referência 15). Critérios AISC-LRFD de flexibilização, prejuízo e ondulação transversal de braçadeira foram adaptados para tensão, casos de carga de um lado e dois lados, respectivamente. Os fatores de resistência dados são os de AISC. Packer (Referência 22) indica uma correlação razoavelmente boa com resultados de teste de conexão de caixa disponível, na maioria da variedade de dois lados. C-2.25.2.3 Distribuição Desigual de Carga (Largura Efetiva). Para seções de caixa, esse problema é agora tratado em termos de conceitos de largura efetiva, na qual entrega de carga a partes mais flexíveis da corda é ignorada. Critérios para verificações de membro de ramificação são dados em 2.25.2.3(1) baseado empiricamente em trabalho IIW/CIDECT. Critérios para cálculos de carga em soldas (2.24.5) são baseados no teste de Packer (Referência 23) para conexões de folga em K- e N-; e em extrapolação e simplificação de conceitos de largura efetiva de IIW para conexões transversais e em T- e Y-. C-2.25.2.4 Conexões Sobrepostas. Ao fornecer transferência de carga direta de um membro de ramificação ao outro em conexões em K- e N-, juntas sobrepostas reduzem as demandas de puncionamentopuncionamento no membro principal, permitindo o uso de membros de corda mais finos em estruturas. São particularmente vantajosos em seções de caixa, nas quais as preparações de extremidade do membro não são tão complexas como para tubos circulares. Conexões completamente sobrepostas, nas quais a cinta de sobreposição é inteiramente soldada à cinta conectada, sem qualquer contato de corda, têm a vantagem de preparações de extremidade ainda mais simples. No entanto, o problema de puncionamentopuncionamento que estava na corda para conexões de folga é agora transferido para a cinta conectada, que também tem cisalhamento de viga e cargas de flexão altos ao carregar essas cargas para a corda. A maior parte dos testes de conexões sobrepostas tem sido para casos de carga perfeitamente equilibrada, na qual a carga transversal compressiva de uma ramificação é compensada pela carga de tensão da outra. Em tais conexões sobrepostas, sujeitas a carga equilibrada e predominantemente estática axial, testes têm mostrado que não é necessário concluir a solda "oculta" na extremidade do membro conectado. Em situações de projeto do mundo real, no entanto, carga de cisalhamento de corda localizada ou cargas de trave- mestra entregues aos pontos de painel de um resultado de estrutura em cargas não equilibradas. Nessas situações de desequilíbrio, o membro mais pesadamente carregado deveria ser a cinta conectada, com sua circunferência completa soldada à corda e verificações adicionais de carga líquida na área de cobertura combinada de todas as cintas são requeridas.
  • 455.
    C-2. PROJETO DECONEXÕES SOLDADAS AWS D1.1/D1.1M:2010 435 C-2.25.2.5 Flexão. Como critérios internacionais para capacidade de flexão de conexões tubulares não são tão bem desenvolvidos quanto para cargas axiais, os efeitos de momentos de flexão primária são aproximados como uma carga axial adicional. Na expressão de projeto, JD representa metade do braço de momento entre blocos de tensão criando o momento, análogo a metade de projeto concreto, porque apenas metade da capacidade axial jaz em cada lado do eixo neutro. Vários estados limite de ruptura são usados para derivar as expressões para JD na Tabela C-2.3. Para plastificação de face de corda, um puncionamentopuncionamento uniforme ou capacidade de carga de linha é assumido. Para o limite de resistência de cisalhamento material, a largura efetiva é usada. Colapsos gerais refletem um mecanismo de falha de parede de lado. Finalmente, uma expressão simplificada para JD é dada, que pode conservadoramente ser usada por qualquer dos modos de falha reguladores. Deveria ser tomado cuidado quando deflexões devidas a rotações de junta poderiam ser importantes, por exemplo, lateralmente com relação a quadros de portal em aplicações arquitetônicas. Edições anteriores do código forneceram um decréscimo de 1/3 em capacidade de conexão permissível para essa situação. C-2.25.2.6 Outras Configurações. A equivalência de membros de ramificação de caixa e circulares em cordas de caixa é baseada em seus perímetros respectivos ( ,785 é π/4). Isso em efeito aplica o conceito de puncionamentopuncionamento ao problema, mesmo que esses critérios internacionais sejam sempre dados em formato de resistência de ruptura. Os resultados estão no lado seguro de resultados de teste disponíveis. C-2.27 Limitações de Material Uma abordagem racional para a resistência de ruptura de conexões de caixa escalonadas pode ser tomada, usando o teorema superior vinculado de análise de limite (ver Figura C-2.13) e padrões de linha de ruptura similares àqueles mostrados na Figura C-2.14. Vários padrões de linha de ruptura deveriam ser assumidos para encontrar a capacidade mínima computada, que pode ser igual a ou maior que o verdadeiro valor. Ângulos de ventilação (como mostrado para junta em T-) frequentemente produzem capacidade mais baixa que ângulos simples como mostrado para outros casos. Fatores de projeto sugeridos são dados na Tabela C-2.2; esses têm a intenção de serem consistentes com aqueles usados no corpo do código. Para conexões em T- e Y-, o modificador de geometria é descoberto como uma função de 11 assim como ' em contraste com a expressão mais simples dada em 2.24.1. Para conexões em K-, o parâmetro de folga ξ também deveria ser levado em conta. Esse parâmetros de geometria sem dimensão, η, β, e ξ são definidos na Figura C-2.13. Para folgas aproximando 0 e para unidade de abordagem β muito grande, análise de linha de ruptura indica capacidade de junta extremamente alta e impraticável. As provisões de limitação de 2.25.1.1 e 2.25.1.3 também deveriam ser verificadas. C-2.27.1.3 Conexões de Caixa em T-, Y-, ou K-. Conexões tubulares são sujeitas a concentração de tensão que pode levar a deformações de ruptura locais e plásticas. Entalhes e descontinuidades agudos na extremidade de soldas e trincas de fadiga que se iniciam sob carga cíclica, colocam demanda adicional na ductibilidade e tenacidade ao entalhe do aço, particularmente sob cargas cíclicas. Essas demandas são particularmente severas no membro principal de conexões tubulares em T-, Y- e K-. Tubulação de caixa formada a frio (por exemplo, ASTM A 500 e tubulação fabricada a partir de placas flexionadas) é suscetível a tenacidade degradada devido a deformação de envelhecimento nos cantos, quando essas regiões severamente deformadas são sujeitas a aquecimento moderado uniforme de soldagem próxima. A adequação de tal tubulação ao serviço pretendido deveria ser avaliada usando testes representando sua condição final (isto é, deformada e envelhecida, se a tubulação não é normalizada após a formação) (ver C-2.27.2.2 para uma discussão de requisitos de teste CVN). C-2.27.2 Tenacidade ao Entalhe de Metal Base Tubular. Alguns aços são listados por grupo de resistência (Grupos I, II, III, IV e V) e classe de tenacidade (Classes A< B e C) nas Tabelas C-2.4-C-2.6. Essas listas são para orientação para projetistas, e seguem práticas há muito estabelecidas para estruturas marítimas, como descrito na Referência 9 e a seguir: Grupos de Resistência. Aços podem ser agrupados de acordo com o nível de resistência e características de soldagem como segue (ver também 3.3 e 3.5): (1) O Grupo I designa aços de carbono estruturais moderados com limite de escoamento mínimo especificado de 40 ksi [280 MPa] ou menos. Carbono equivalente (definido no Anexo I, 16.1.1) é geralmente 0,40% ou menos, e esses aços podem ser soldados por quaisquer projetos de soldagem como descrito no código. (2) O Grupo II designa aços de baixa liga de resistência intermediária com limite de escoamento mínimo especificado de acima de 40 ksi até 52 ksi [280 MPa a 360 MPa]. Faixas de carbono equivalente de 0,45% a maiores, e esses aços requerem o uso de processos de soldagem de baixo nível de hidrogênio. (3) O Grupo II designa aços de baixa liga de resistência alta com limite de escoamento mínimo especificado acima de 52 ksi até 75 ksi [360 MPa a 515 MPa]. Tais aços podem ser usados, contanto que cada aplicação seja investigada com respeito ao seguinte: (a) Soldabilidade e WPSs especiais que podem ser requeridas. WPSs de baixo nível de hidrogênio seriam geralmente presumidas. (b) Problemas de fadiga que podem resultar de uso de tensões de trabalho mais altas e (c) Tenacidade ao entalhe em relação a outros elementos de controle de fratura, como fabricação,
  • 456.
    C-2. PROJETO DECONEXÕES SOLDADAS AWS D1.1/D1.1M:2010 436 procedimentos de inspeção, tensão de serviço e temperatura de ambiente. (4) Os Grupos IV e V incluem aços de construção de resistência mais alta na faixa acima de 75 ksi até limite de 100 ksi [515 MPa até 690 MPa]. Cuidado extremo deveria ser exercido com respeito a controle de hidrogênio para evitar trinca e aporte de calor para evitar perda de resistência devido a excesso de têmpera. Classe de Tenacidade. Classificações de tenacidade A, B e C podem ser usadas para cobrir vários graus de caráter crítico mostrados na matriz da Tabela C-2.7, e como descrito abaixo: Estrutura primária (ou de fratura crítica) cobre elementos cuja falha seria catastrófica. Estrutura secundária cobre os elementos cuja falha não levaria a colapso catastrófico, condições sob as quais a estrutura poderia ser ocupada ou capaz de danos principais fora do local (por exemplo, poluição), ou ambos. Para estruturas de espaço-quadro tubular redundantes, a fratura de uma única cinta ou de sua conexão de extremidade provavelmente não levaria a colapso sob cargas normais ou mesmo moderadamente severas. A resistência é no entanto de alguma forma reduzida, e o risco de colapso sob extrema sobrecarga aumenta correspondentemente. (1) Aços de classe C são aqueles que têm um histórico de aplicação bem sucedida em estruturas soldadas em temperaturas de serviço acima de congelamento, mas para os quais testes de impacto não são especificados. Tais aços são aplicáveis a membros estruturais envolvendo espessura limitada, formação moderada, baixa restrição, concentração de tensão moderada, carga quase estática (tempo de levantamento 1 segundo ou mais) e redundância estrutural tal que uma fratura isolada n~so seria catastrófica. Exemplos de tais aplicações são estacas, cintas em quadros de espaço redundantes, vigas de chão e colunas. (2) Aços Classe B são adequados para uso onde espessura, trabalho frio, restrição, concentração de tensão e carga de impacto ou ausência de redundância, ou ambos, indicam a necessidade de tenacidade ao entalhe aprimorada. Quando testes de impacto são especificados, aços Classe B deveriam exibir energia CVN de 15 ft.lb [20 J] para Grupo I, 25 ft.lb [34 J] para Grupo II, e 35 ft·lb [48 J] para Grupo III, à temperatura de serviço antecipada mais baixa. Aços listados aqui como Classe B podem geralmente atender esses requisitos CVN a temperaturas que variam de 50º F a 32º F [10º'C a 0º C]. Exemplos de tais aplicações são conexões em estrutura secundária e apoio em estrutura primária. Quando testes de impacto são especificados para aços de Classe B, um teste de lote de aquecimento em conformidade com ASTM A 673, Frequência H, é normalmente usado. No entanto, não há garantia positiva de que tenacidade de Classe B será presente em pedaços de aço que não são testados. (3) Aços Classe C são adequados para uso a temperaturas de subcongelamento e para aplicações críticas envolvendo combinações adversas dos fatores citados acima. Aplicações críticas podem garantir teste CVN a 36ºF – 54ºF [20ºC-30º] abaixo da temperatura de serviço antecipada mais baixa. Essa margem extra de tenacidade ao entalhe previne a propagação de fraturas quebradiças a partir de descontinuidades grandes, e fornece detenção de trincas em espessuras de várias polegadas. Aços enumerados aqui como Classe A podem geralmente atender esses requisitos CVN declarados acima a temperaturas que variam de -4º F a - 40º F [-20ºC a -40º C]. A frequência de teste de impacto para aços Classe A deveria estar em conformidade com a especificação sob a qual o aço é ordenado; na ausência de outros requisitos, teste de lote de aquecimento pode ser usado. C-2.27.2.1 Requisitos de Teste CVN. Esses requisitos mínimos de tenacidade ao entalhe para membros de tensão de seção pesada seguem as provisões recentemente propostas por AISC. Eles têm base em uma extensão considerável nos fenômenos de mudança de temperatura descritos por Barsom (Referência 16). O efeito de mudança de temperatura é que materiais carregados estaticamente exibem níveis similares de ductilidade como espécimes de teste CVN ciclicamente carregados testados uma temperatura mais alta. Para aços de resistência mais alta, Grupos III, IV e V, a mudança de temperatura é menos efetiva, também considerações de liberação de energia de deformação mecânica de fratura sugeririam valores de energia requerida mais altos. Testar aços laminados em uma base de lote de aquecimento deixa exposto a variações consideráveis no aquecimento, com testes CVN mostrando mais propriedades de dispersão que de resistência. No entanto, é melhor que nenhum teste. C-2.27.2.2 ÚLTIMOS Requisitos. Os membros principais em conexões tubulares estão sujeitos a concentrações de tensão locais que podem levar a deformações plásticas e de ruptura local na carga de projeto. Durante o tempo de serviço, carga cíclica pode iniciar trincas de fadiga, fazendo demandas adicionais na ductilidade do aço. Essas demandas são particularmente severas em metais de junta de parede pesada projetados para puncionamentopuncionamento. C-2.27.2.3 Tenacidade ao Entalhe Alterna-tiva. As condições listadas em (1)-(4) abaixo deveriam ser consideradas quando especificando requisitos de tenacidade ao entalhe. (1) Conexões Embaixo D'água. Para partes embaixo d'água de plataformas marítimas do tipo modelo redundantes, API recomenda que aço para metais de junta (como metais de junta de perna de jaqueta, cordas em juntas principais em X e K e membros conectados em conexões projetadas como sobrepostas) atendem um dos seguintes critérios de tenacidade ao entalhe a temperaturas dadas na Tabela C-2.8. (a) Desempenho ininterrupto de Teste de Queda de Peso NRL. (preferido)
  • 457.
    C-2. PROJETO DECONEXÕES SOLDADAS AWS D1.1/D1.1M:2010 437 (b) energia CVN: 15 ft.lb [20 J] para aços de Grupo I, 25 ft.lb [34 J] para aços de Grupo II e 35 ft.lb [4 J] para aços de Grupo III (teste transversal). O critério para contenção de trinca NRL preferido segue a partir do uso do Diagrama de Análise de Fratura (Referência 17), e a partir de falhas de conexões pesadas atendendo critérios de iniciação CVN de mudança de temperatura. Para temperaturas de serviço a 40ºF [4ºC] ou maiores, esses requisitos podem normalmente ser atendidos usando qualquer dos aços de Classe A. (2) Serviço Atmosférico. Para conexões expostas a temperaturas mais baixas e impacto possível, ou para conexões críticas em qualquer local no qual é desejável evitar quaisquer fraturas quebradiças, os aços de Classe A mais tenazes deveriam ser considerados, por exemplo, Especificação API. 2H, Gr. 42 ou Gr. 50. Para aços de resistência mais alta e de ruptura de 50 ksi [345 MPa], atenção especial deveria ser dada a procedimentos de soldagem, para evitar degradação de HAZs. Mesmo para o serviço menos exigente de estruturas comuns, os seguintes grupos/classes de metal base NÃO são recomendados para uso como membros principais em conexões tubulares: IIC, IIIB, IIIC, N, e V. (3) Conexões Críticas. Para conexões críticas envolvendo alta restrição (inclusive geometria adversa, alto limite de escoamento, seções espessas ou qualquer combinação dessas condições) e carga de tração através-espessura em serviço, deveria ser dada consideração ao uso de aço tendo aprimorado propriedades através-espessura (direção Z), por exemplo, Especificação API. 2H, Suplementos S4 e S5, ou ASTMA 770. (4) Extremidades de Cinta. Embora as extremidades de cinta em conexões tubulares também são sujeitas a concentração de tensão, as condições de serviço não são tão severas quanto o membro principal (ou metal de junta). Para cintas críticas, para as quais fratura quebradiça seria catastrófico, deveria ser dada consideração ao uso de extremidades de topo nas cintas tendo a mesma classe de metal de junta, ou uma classe mais baixa. Essa provisão não se aplica ao corpo de cintas (entre conexões).
  • 458.
    C-2. PROJETO DECONEXÕES SOLDADAS AWS D1.1/D1.1M:2010 438 Tabela C-2.1 Estudo de Limites de Diâmetro/Espessura e Largura/Espessura Chata para Tubos (ver C-2.21.1) Para Fy em ksi Para Projeto de Conexão AWS Para Projeto de Membro Falha Local Ult Vp = 0,57 Fyo Colapso Geral no Limite da Corda da Parede Lateral Curva Cilindro -Cone 1:4 Aplicabilidad e Das Regras em 2 25 Projeto Completo de Plástico Momentos do Plástico,Rotação Limitada Momento do Limite ou Limite do Comportamento Elástico LimiteAxial Completo Fórmula do Limite de Flambagem Local Tubos Circulares 16 para Conexõe s em K 12 para T & Y 9 para X — 30 60 300 API RP2A — √ AISC Seção de Caixa 8 for K & N 20 20 √ Para Conexões de Folga √ √ √ a ( ) √ Sem Limite AISI Classe A 7 for T & K √ Para Sobreposição √ √ AISI Classe B Para Fy em MPa Para Projeto de Conexão AWS Para Projeto de Membro Falha Local Ult Vp = 0,57 Fyo Colapso Geral no Limite da Corda da Parede Lateral Curva Cilindro -Cone 1:4 Aplicabilidad e Das Regras em 2 25 Projeto Completo de Plástico Momentos do Plástico,Rotação Limitada Momento ou Limite do Comportamento Elástico LimiteAxial Completo Limite das Fórmulas de Ondulação Locais Circular Tubes 112 para Conexõe s em K 84 para T & Y 63 para X — 210 60 300 API RP2A — √ AISC Box Sections 56 para K & N 15,4 140 √ Para Conexões de Folga √ √ √ a ( ) √ Sem Limite AISI Classe A 49 para T & K √ Para Sobreposição √ √ AISI Classe B Notas: 1. AISI Classe A = formado a quente. 2. AISI Classe B = formado a frio e soldado. 3. Largura do plano deve ser tomada como D – 3t para projeto de membro de seção de caixa.
  • 459.
    C-2. PROJETO DECONEXÕES SOLDADAS AWS D1.1/D1.1M:2010 439 Tabela C-2.2 Fatores de Projeto Sugeridos (ver C-2.25.2) Valor Assumido para K SF para Cargas Estáticas SF Onde Aumento de 1/3 Aplica-se Onde a quebra final de resistência da conexão - incluindo efeitos de tensão endurecida etc. - pode ser utilizada; Estruturas redundantes livres de falhas e projetos consistentes com 2.24.1 Membros críticos cujas falhas individuais seriam catastróficas 1,5a 1,5a 1,8 2,7 1,4 r,0 Aplicações de arquitetura onde deformações localizadas seriam objetáveis 1,0 1,7 1,3 a Aplicável quando o membro principal, Fy, não é levado a exceder 2/3 da resistência à tração mínima especificada. Tabela C-2.3 Valores de JD (ver C-2.25.2.5) Modo de Falha Governante Flexão no Plano Flexão Fora do Plano Falha da Corda da Parede de Plástico η (β η ) (β η) β (η β ) (η β) Resistência de Cisalhamento do Material da Corda η (β η ) (β η) β η β ( β β) (η β ) Colapso Geral η Largura Efetiva do Membro de Ramificação η (β η ) (η β ) β η β ( β β) (η β ) Aproximação Conservadora para Qualquer Modo η β
  • 460.
    C-2. PROJETO DECONEXÕES SOLDADAS AWS D1.1/D1.1M:2010 440 Tabela C-2.4 Placas de Aço Estrutural (ver C-2.27.2) Grupo de Elasticidade Classe de Tenacidade Especificação e Grau Limite de escoamento Resistência à Tração ksi MPa ksi MPa I C ASTM A 36 (espessura até 2 in [50 mm]) ASTM A 131 Grau A (espessura até 1/2 in [12 mm]) 36 34 250 235 58–80 58–71 400– 550 440– 490 I B ASTM A 131 Graus B, D ASTM A 573 Grau 65 ASTM A 709 Grau 36T2 34 35 36 235 240 250 58–71 65–77 58–80 400– 490 450– 550 400– 550 I A ASTM A 131 Graus CS, E 34 235 58–71 400– 490 II C ASTM A 242 (espessura até 1/2 in [12 mm]) ASTM A 572 Grau 42 (espessura até 2 in [50 mm]) ASTM A 572 Grau 50 (espessura até 1/2 in [12 mm])a ASTM A 588 (4 in [100 mm] e abaixo) 50 42 50 50 345 290 345 345 70 60 65 70 min 480 415 450 485 min II B ASTM A 709 Graus 50T2, 50T3 ASTM A 131 Grau AH32 ASTM A 131 Grau AH36 ASTM A 808 (resistência varia com a espessura) ASTM A 516 Grau 65 50 45,5 51 42–50 35 345 315 350 290–345 240 65 68–85 71–90 60–65 65–85 450 470– 585 490– 620 415– 450 450– 585 II A API Espec 2H Grau 42 Grau 50 (espessura até 2-1/2 in [65 mm]) (espessura acima de 2-1/2 in [65 mm]) API Espec 2W Grau 42 (espessura até 1 in [25 mm]) (espessura acima de 1 in [25 mm]) Grau 50 (espessura até 1 in [25 mm]) (espessura acima de 1 in [25 mm]) Grau 50T(espessura até de 1 in [25 mm]) (espessura acima de 1 in [25 mm]) API Espec 2Y Grau 42 (espessura até 1 in [25 mm]) (espessura acima de 1 in [25 mm]) Grau 50 (espessura até 1 in [25 mm]) (espessura acima de 1 in [25 mm]) Grau 50T(espessura até de 1 in [25 mm]) (espessura acima de 1 in [25 mm]) ASTM A 131 Graus DH32, EH32 Graus DH36, EH36 ASTM A 537 Classe I (espessura até 2-1/2 in [65 mm]) ASTM A 633 Grau A Graus C, D ASTM A 678 Grau A 42 50 47 42–67 42–62 50–75 50–70 50–80 50–75 42–67 42–62 50–75 50–70 50–80 50–75 45 5 51 50 42 50 50 290 345 325 290–462 290–427 345–517 345–483 345–522 345–517 290–462 290–462 345–517 345–483 345–572 345–517 315 350 345 290 345 345 62–80 70–90 70–90 62 62 65 65 70 70 62 62 65 65 70 70 68–85 71–90 70–90 63–83 70–90 70–90 430– 550 483– 620 483– 620 427 427 448 448 483 483 427 427 448 448 483 483 470– 585 490– 620 485– 620 435– 570 485– 620 485– 620 III C ASTM A 633 Grau E 60 415 80–100 550– 690 III A ASTM A 537 Classe II (espessura até 2-1/2 in [65 mm]) ASTM A 678 Grau B API Espec 2W Grau 60 (espessura até 1 in [25 mm]) (espessura acima de 1 in [25 60 60 60–90 60–85 60–90 415 415 414–621 414–586 414–621 80–100 80–100 75 75 75 550– 690 550– 690 517
  • 461.
    C-2. PROJETO DECONEXÕES SOLDADAS AWS D1.1/D1.1M:2010 441 mm]) API Espec 2Y Grau 60 (espessura até 1 in [25 mm]) (espessura acima de 1 in [25 mm]) ASTM A 710 Grau A Classe 3 (calor tratado a resfriamento e precipitação) Através de 2 in [50 mm] 2 in [50 mm] até 4 in [100mm] 60–85 75 65 60 414–586 515 450 415 75 85 75 70 517 517 517 585 515 485 IV C ASTM A 514 (espessura acima de 2-1/2 in [65 mm]) ASTM A 517 (espessura acima de 2-1/2 in [65 mm]) 90 90 620 620 110– 130 110– 130 760– 890 760– 896 V C ASTM A 514 (espessura até 2-1/2 in [65 mm]) ASTM A 517 (espessura até 2-1/2 in [65 mm]) 100 100 690 690 110– 130 110– 130 760– 895 760– 895 a Para Espessura de 2 in [50 mm] para Tipo 1 ou 2, Prática de Grão Fino Desativada Observação: Ver lista de Especificações Referidas para os títulos completos do exposto acima.
  • 462.
    C-2. PROJETO DECONEXÕES SOLDADAS AWS D1.1/D1.1M:2010 442 Tabela C-2.5 Canos de Aço Estrutural e Moldes Tubulares (ver C-2.27.2) Grupo Classe Especificação e Grau Limite de escoamento Resistência à Tração ksi MPa ksi MPa I C API Espec 5L Grau Ba ASTM A 53 Grau B ASTM A 139 Grau B ASTM A 500 Grau A (redondo) (moldado) ASTM A 500 Grau B (redondo) (moldado) ASTM A 501 (redondo e moldado) API Espec 5L Grau X42 (expansão max. de resfriamento 2%) 35 35 35 33 39 42 46 36 42 240 240 240 230 270 290 320 250 290 60 60 60 45 45 58 58 58 60 415 415 415 310 310 400 400 400 415 I B ASTM A 106 Grau B (normalizado) ASTM A 524 Grau I (até 3/8 in [10 mm] w.t.) Grau II (acima de 3/8 in [10 mm] w.t.) 35 35 30 240 240 205 60 60 55–80 415 415 380–550 I A ASTM A 333 Grau 6 ASTM A 334 Grau 6 35 35 240 240 60 60 415 415 II C API Espec 5L Grau X42 (expansão max. de resfriamento 2%) ASTM A 618 52 50 360 345 66 70 455 485 II B API Espec 5L Grau X52 com SR5, SR6, ou SR8 52 360 66 455 III C ASTM A 595 Grau A (formas afiladas) ASTM A 595 Grau B e C (formas afiladas) 55 60 380 410 65 70 450 480 a Sem costura ou com solda de costura longitudinal. Notas: 1. Ver lista de Especificações Referenciadas para títulos completos do acima exposto. 2. Cano estrutural também deve ser construído de acordo as Espec. API 2B, ASTM A 139+, ASTM A 252+, ou ASTM A 671 usando graus de placa estrutural listados na Tabela C-2.4 exceto que o teste hidrostático deve ser omitido. 3. Com soldas longitudinais e juntas de topo circunferenciais. Tabela C-2.6 Moldes de Aço Estrutural (ver C-2.27.2) Grupo Classe Especificação e Grau Limite de escoamento Resistência à Tração ksi MPa ksi MPa I C ASTM A 36 (espessura até 2 in [50 mm]) ASTM A 131 Grau A (espessura até 1/2 in [12 mm]) 36 34 250 235 58–80 58–80 400–550 400–550 I B ASTM A 709 Grau 36T2 36 250 58–80 400–550 II C ASTM A 572 Grau 42 (espessura até to 2 in [50 mm]) ASTM A 572 Grau 50 (espessura até 1/2 in [12 mm]) ASTM A 588 (espessura até 2 in [50 mm]) 42 50 50 290 345 345 60 65 70 415 480 485 II B ASTM A 709 Graus 50T2, 50T3 ASTM A 131 Grau AH32 ASTM A 131 Grau AH36 50 46 51 345 320 360 65 68–85 71–90 450 470–585 490–620 Notas: 1. Para Espessura de 2 in [50 mm] para Tipo 1 ou 2 Desativado, Prática de Grão Fino 2. Esta tabela é parte do comentário sobre considerações de resistência para estruturas tubulares (ou compostos de tubulares e outros formas), ex., usados para plataformas marítimas. Isso não implica que formas não listadas não se encaixam em outras aplicações.
  • 463.
    C-2. PROJETO DECONEXÕES SOLDADAS AWS D1.1/D1.1M:2010 443
  • 464.
    C-2. PROJETO DECONEXÕES SOLDADAS AWS D1.1/D1.1M:2010 444 Tabela C-2.7 Matriz de Classificação para Aplicações(ver C-2.27.2) Tabela C-2.8 Condições de Teste CVN (ver C-2.27.2.2) Diâmetro / Espessura Temperatura de Teste Condição de Teste Acima de 30 20–30 Abaixo de 20 36 F [20 C] abaixo LASTa 54 F [30 C] abaixo LAST 18 F [10 C] abaixo LAST Placa Plana Placa Plana Como construída
  • 465.
    C-2. PROJETO DECONEXÕES SOLDADAS AWS D1.1/D1.1M:2010 445 Figura C-2.1 – Equilíbrio de Solda de Filete sobre o Ângulo do Eixo Neutro (ver C-2.6.2) Figura C-2.2 – Planos de Cisalhamento para Soldas em Chanfro e de Filete (ver C-2.6.4)
  • 466.
    C-2. PROJETO DECONEXÕES SOLDADAS AWS D1.1/D1.1M:2010 446 Figura C-2.3 – Carga Excêntrica (ver C-2.6.4.2 e C-2.6.4.3) Figura C-2.4 – Relação de Deformação de Carga para Soldas (ver C-2.6.4.2 e C-2.6.4.3)
  • 467.
    C-2. PROJETO DECONEXÕES SOLDADAS AWS D1.1/D1.1M:2010 447 Elemento 1: Θ = 45; L = 1,41; C = 1,29 Elemento 2: Θ = 0; L = 1; C = 0,825 Elemento 3: Θ = 90; L = 1; C = 1,5 Resistência Permissível = D(0,707)(0,3FEXX)(0,0625)Σ Ci Li Σ CiLi = [1,29(1,41) + 0,825(1) + 1,50(1)] D = tamanho da solda em 16ths Figura C-2.5 – Exemplo de um Grupo de Solda Obliquamente Carregado
  • 468.
    Figura C-2.6 –Solução Gráfica da Capacidade de um Grupo de Solda Obliquamente Carregada AWS D1.1/D1.1M:2010 C-2. PROJETO DE CONEXÕES SOLDADAS
  • 469.
    AWS D1.1/D1.1M:2010 C-2.PROJETO DE CONEXÕES SOLDADAS 449 Figura C-2.7 - Juntas Sobrepostas Soldadas em Solda de Filete Única (ver C- 2.9.1.1) Figura C-2.8 - Ilustrações de Tensões do Membro de Ramificação Correspondentes ao Modo de Carga (ver C-2.21.6.2)
  • 470.
    C-2. PROJETO DECONEXÕES SOLDADAS AWS D1.1/D1.1M:2010 450 Observação: Requisitos mínimos para solda externa em conexões tubulares designadas para corresponder a 2.21.6.6(1). Observação: Indicação MPI, convexidade excessiva, ou mordedura nas extremidades dos passes de solda ou entre passes adjacentes devem ser corrigidos por retifica