Universidade Federal de Santa Catarina
Departamento de Engenharia Civil
Programa de Educação Tutorial
Universidade Federal de Santa Catarina
Centro Tecnológico
Departamento de Engenharia Civil
Apostila de
Aeroportos
2012
Programa de Educação Tutorial – PET
Profª Lenise Grando Goldner
Universidade Federal de Santa Catarina
Universidade Federal de Santa Catarina
Departamento de Engenharia Civil
Universidade Federal de Santa Catarina
Centro Tecnológico
Departamento de Engenharia Civil
Apostila de
Aeroportos
Profª Lenise Grando Goldner
Colaboração dos Bolsistas PET:
Juliana Vieira dos Santos
Valmir
Universidade Federal de Santa Catarina
Lenise Grando Goldner
Colaboração dos Bolsistas PET:
Juliana Vieira dos Santos
Valmir Cominara Junior
Aeroportos
Apostila de Aeroportos
SUMÁRIO
MÓDULO I
AULA 01...............................................................................................................................................11
1. Introdução à Organização do Transporte Aéreo.........................................................................11
1.1. Espaço Aéreo...........................................................................................................................11
1.2. Princípios Gerais......................................................................................................................11
1.3. Organizações Internacionais de Regulamentação da Aviação Civil ........................................12
1.3.1. Internacional Civil Aviation Organization – ICAO...............................................................12
1.3.2. Internacional Air Transport Association - IATA...................................................................13
1.3.3. Federal Aviation Administration - FAA................................................................................13
1.3.4. Ministério da Aeronáutica do Brasil....................................................................................13
1.3.5. Comando da Aeronáutica do Brasil - COMAER...................................................................13
1.3.6. Agência Nacional de Aviação Civil - ANAC...........................................................................13
1.4. Legislação Nacional e Internacional........................................................................................14
1.5. Evolução do Transporte Aéreo Regular No Brasil ...................................................................14
1.5.1. Período de 1927 a 1939 ......................................................................................................14
1.5.2. Período de 1939 a 1959 ......................................................................................................15
1.5.3. Período de 1961 a 1968 ......................................................................................................15
1.5.4. Período de 1969 a 1980 ......................................................................................................15
1.5.5. Período de 1981 a 1989 ......................................................................................................15
1.5.6. Período de 1988 a 1998 ......................................................................................................15
1.5.7. Período de 1998 a 2004 ......................................................................................................15
1.5.8. Período de 2005..................................................................................................................16
1.5.9. Período de 2006..................................................................................................................17
1.5.10. Período de 2007..................................................................................................................17
1.5.11. Período de 2008..................................................................................................................17
1.5.12. Período de 2009..................................................................................................................18
Aeroportos
Apostila de Aeroportos
1.5.13. Período de 2010..................................................................................................................19
AULA 02...............................................................................................................................................21
1. Composição de Peso e Desempenho em Cruzeiro......................................................................21
1.1. Definições................................................................................................................................21
1.1.1. Limitantes estruturais .........................................................................................................21
1.1.2. Limitantes operacionais ......................................................................................................22
1.2. Definições dos Pesos, Segundo Manuais do Airport Planning (Boeing 747 – 1984)...............22
1.3. Desempenho em Cruzeiro.......................................................................................................23
1.4. Pontos Notáveis ......................................................................................................................24
2. Nomenclatura Utilizada...............................................................................................................24
3. Classificações...............................................................................................................................26
3.1. Segundo a 1019.......................................................................................................................26
3.2. Operacional.............................................................................................................................26
3.2.1. Pista de Pouso por Instrumentos........................................................................................26
3.2.2. Pista para Pouso sem Instrumentos....................................................................................27
3.3. ICAO.........................................................................................................................................27
AULA 03...............................................................................................................................................29
1. Introdução à Mecânica de Locomoção do Avião ........................................................................29
1.1. O Avião ....................................................................................................................................29
1.2. Componentes..........................................................................................................................29
1.3. Noções de Mecânica de Vôo...................................................................................................31
1.3.1. Aerofólios............................................................................................................................31
1.3.1.1. Forças que atuam sobre a superfície de um aerofólio....................................................31
1.3.1.2. Elementos do Aerofólio e do Seu Perfil ..........................................................................33
1.3.1.3. Quantidade das Forças que Atuam em um Aerofólio.....................................................34
1.3.2. Forças que Atuam no Avião ................................................................................................36
1.3.2.1. Eficiência Aerodinâmica..................................................................................................37
Aeroportos
Apostila de Aeroportos
1.3.2.2. Força de Tração e Potênica Necessária ao Vôo...............................................................37
1.3.2.3. Estol.................................................................................................................................39
AULA 04...............................................................................................................................................41
1. Dimensionamento do Comprimento De Pista ............................................................................41
1.1. Comprimento de Pista.............................................................................................................41
1.2. Definições................................................................................................................................42
1.3. Comprimento de Pista Balanceada.........................................................................................43
1.3.1. Decolagem sem Falha .........................................................................................................43
1.3.2. Conclusões...........................................................................................................................43
1.4. Comprimento da Pista para Pouso..........................................................................................44
1.5. Procedimento de Subida.........................................................................................................44
2. Determinação do Comprimento de Pista Necessário – Desempenho na Decolagem................45
2.1. Determinantes do Comprimento de Pista ..............................................................................45
2.2. Fatores que Determinam o Comprimento de Pista para Decolagem.....................................46
2.3. Comprimento de Pista a Ser Construído.................................................................................47
3. Fatores de Correção (segundo ICAO)..........................................................................................51
4. Nomenclatura Conhecida............................................................................................................51
5. Pistas de Pouso / Decolagem ......................................................................................................52
5.1. Código de Referência do Aeródromo......................................................................................52
5.2. Largura da Pista de Pouso / Decolagem..................................................................................53
AULA 05...............................................................................................................................................54
1. Configuração Do Aeroporto ........................................................................................................54
1.1. Configuração de Pistas de Pouso: ...........................................................................................54
1.1.1. Objetivos do Planejamento.................................................................................................54
1.2. Orientação de Pistas................................................................................................................54
1.2.1. Determinação Gráfica da Orientação da Pista....................................................................55
1.3. Quantidade de Pistas de Pouso e Decolagem.........................................................................61
Aeroportos
Apostila de Aeroportos
1.4. Capacidades Horárias Estimadas.............................................................................................61
1.5. Configuração de Pistas – Comparação....................................................................................61
1.6. Pistas de Táxi...........................................................................................................................62
1.6.1. Objetivos do Planejamento.................................................................................................62
1.6.2. Pista de Táxi-Saída...............................................................................................................62
1.7. Baias de Espera........................................................................................................................64
1.8. Evolução do Sistema de Pistas de Táxi....................................................................................64
1.9. Localização da Área Terminal / Pátio de Aeronaves...............................................................64
1.9.1. Objetivos de Planejamento.................................................................................................64
1.9.2. Fatores que influenciam a localização da Área Terminal....................................................64
1.9.3. Localização de Instalações da Área Terminal......................................................................65
2. Outras Instalações.......................................................................................................................67
2.1. Infra-estrutura de Apoio .........................................................................................................67
AULA 06...............................................................................................................................................72
1. Escolha De Sítio Aeroportuário ...................................................................................................72
1.1. Objetivo...................................................................................................................................72
1.2. Etapas do Processo de Escolha ...............................................................................................72
1.3. Fatores que Influenciam Dimensões do Aeroporto................................................................72
1.4. Estudo de Escritório de Possíveis Alternativas........................................................................72
1.4.1. Critérios Básicos de Localização..........................................................................................72
1.5. Metodologia de Escolha de Sítio Aeroportuário.....................................................................73
AULA 07...............................................................................................................................................78
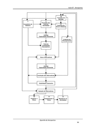
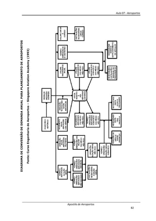
1. Plano Diretor Aeroportuário .......................................................................................................78
1.1. Características Gerais..............................................................................................................78
1.1.1. Seqüência de Fases .............................................................................................................78
1.2. Informações Básicas................................................................................................................78
1.3. Estudos Preliminares...............................................................................................................79
Aeroportos
Apostila de Aeroportos
1.3.1. Estudo da demanda do Transporte Aéreo..........................................................................79
1.3.2. Estudo da Capacidade da Infra-estrutura Aeroportuária....................................................79
1.4. Escolha do Local ......................................................................................................................80
1.4.1. Estudo de Gabinete.............................................................................................................80
1.4.2. Pesquisas de Campo............................................................................................................80
1.4.3. Avaliação Final e Seleção.....................................................................................................80
1.5. Planejamento Geral do Aeroporto..........................................................................................80
1.6. Impactos..................................................................................................................................81
1.6.1. Sociais..................................................................................................................................81
1.6.2. Econômicos .........................................................................................................................81
1.6.3. Ambientais ..........................................................................................................................81
1.7. O Plano Diretor de acordo com as Normas da Icao................................................................86
1.7.1. Demanda de Tráfego...........................................................................................................89
1.7.2. Crescimento de Passageiros e de Aeronaves (doméstico e internacional) ........................89
1.8. Estrutura do Relatório sobre o Plano Diretor .........................................................................91
AULA 08...............................................................................................................................................93
1. Plano de Zona de Proteção de Aeródromo.................................................................................93
1.1. Legislação Internacional..........................................................................................................93
1.2. Legislação Brasileira ................................................................................................................93
1.3. Plano Básico de Zona de Proteção de Aeródromo..................................................................93
1.4. Plano Específico de Zona de Proteção de Aeródromo............................................................94
1.5. Plano de Zona de Proteção de Aeródromo.............................................................................94
1.6. Faixa de Pista...........................................................................................................................95
1.7. Superfície de Aproximação .....................................................................................................95
1.8. Superfície de Decolagem.........................................................................................................96
1.9. Superfície de Aproximação e Transição Interna e Pouso Interrompido.................................98
1.10. Superfície de Transição .....................................................................................................100
Aeroportos
Apostila de Aeroportos
1.11. Superfície Horizontal Interna ............................................................................................101
1.12. Superfície Cônica...............................................................................................................102
1.13. Especificações para Superfícies Limitadoras de Obstáculos de Aeródromos...................103
1.14. Requisitos para Elaboração do PBZPA ..............................................................................104
1.14.1. Tipo de operação do aeródromo ......................................................................................104
1.14.2. Código da pista..................................................................................................................105
2. Plano de Zoneamento de Ruído................................................................................................105
AULA 09.............................................................................................................................................108
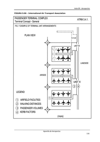
1. O Terminal de Passageiros ........................................................................................................108
1.1. Funções Básicas do Terminal ................................................................................................108
1.2. Concepções Básicas de um TPS.............................................................................................108
1.2.1. Forma do Terminal............................................................................................................108
1.2.2. Nível do Processamento....................................................................................................108
1.3. Fluxos no Terminal de Passageiros .......................................................................................109
1.3.1. Demanda do Transporte Aéreo.........................................................................................109
1.3.2. Dimensionamento do TPS (Doméstico/Internacional) .....................................................109
1.4. Principais Componentes Operacionais..................................................................................109
1.4.1. Embarque..........................................................................................................................109
1.4.2. Desembarque....................................................................................................................109
1.4.2.1. Trânsito..........................................................................................................................110
1.4.2.2. Índices e Áreas...............................................................................................................110
1.4.3. Parâmetros de Interesse...................................................................................................110
1.4.4. Perfil do Passageiro...........................................................................................................110
1.5. Bibliografia ............................................................................................................................110
Aeroportos
Apostila de Aeroportos
AULA 01.............................................................................................................................................136
1. Pavimento De Aeroportos.........................................................................................................136
1.1. Dimensionamento de Pavimentos........................................................................................136
1.2. Conceitos Fundamentais.......................................................................................................136
1.3. Características das Aeronaves: Tipos de Trem de Pouso......................................................137
1.4. Mecânica dos Pavimentos.....................................................................................................137
1.5. Dimensionamento de Pavimentos........................................................................................138
Determinação da Equivalência de Partidas Anuais para a Aeronave de Projeto..............................140
1.6. Dimensionamento e Pavimento Flexível...............................................................................144
1.6.1. Camadas do Pavimento.....................................................................................................144
1.6.2. Dados a Serem Considerados no Projeto..........................................................................144
1.7. Espessura Mínima da Base....................................................................................................145
1.8. Tabelas de Equivalência para projeto de reforço .................................................................146
1.9. Pavimentos para Aeronaves Leves........................................................................................152
1.10. Dimensionamento dos Pavimentos Rígidos......................................................................155
1.11. Dimensionamento dos Pavimentos Rígidos......................................................................158
1.12. Tamanho de Juntas de Placas sem Sub-Base Estabilizada................................................162
1.13. Tamanho de Juntas de Placas com Sub-Base Estabilizada................................................162
Exercício de Dimensionamento de Pavimento Flexível ....................................................................164
AULA 02.............................................................................................................................................165
1. Drenagem em Aeroportos.........................................................................................................165
1.1. As Áreas dos Aeroportos.......................................................................................................165
1.2. Funções da Drenagem...........................................................................................................165
1.3. Estimativa da Água de Escoamento das Chuvas ...................................................................165
1.4. Método Racional...................................................................................................................165
1.5. Operação do Método............................................................................................................165
1.6. Fórmulas Utilizadas ...............................................................................................................166
Aeroportos
Apostila de Aeroportos
1.7. Exercícios de Drenagem – Método Racional.........................................................................170
AULA 03.............................................................................................................................................177
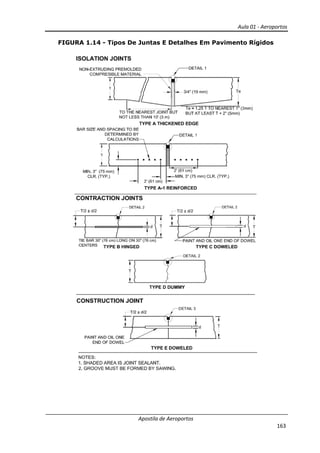
1. Sinalização Horizontal de Pista..................................................................................................177
1.1. Tipos de Sinalização ..............................................................................................................177
1.2. Pista de Pouso e Decolagem .................................................................................................177
1.3. Tipos de Sinalização de Pista de Rolamento ou Táxi.............................................................188
1.4. Exercício – Sinalização Horizontal de Pista P/D.....................................................................192
AULA 04.............................................................................................................................................195
1. Acessos Terrestres e Estacionamentos.....................................................................................195
1.1. Parâmetros para o Dimensionamento dos Estacionamentos de Automóveis em Aeroportos
Brasileiros..........................................................................................................................................195
1.2. Introdução.............................................................................................................................196
1.3. Composição da Amostra do Estudo ......................................................................................198
1.4. Escolha Modal e Demanda de Autos nos Estacionamentos dos Aeroportos Hercílio Luz e
Salgado Filho .....................................................................................................................................199
1.5. Taxas de Utilização dos Estacionamentos.............................................................................205
1.6. Modelos de Regressão Linear para os Aeroportos ...............................................................205
1.7. Conclusões.............................................................................................................................206
1.8. Referências Bibliográficas .....................................................................................................208
AULA 05.............................................................................................................................................210
HELIPORTOS E HELIPONTOS..............................................................................................................210
Aeroportos
Apostila de Aeroportos
AULA 01
1. Introdução à Organização do Transporte Aéreo
1.1. Espaço Aéreo
• Primeiras controvérsias: ascensões de balões (Paris-1784)
Século XIX – debates:
1903 Irmãos WRIGHT – Colocam em vôo um engenho mais pesado do que o Ar.
1906 SANTOS DUMONT – França – Primeiro Aeroplano.
1917-1919 1ª Guerra Mundial – Aprimoramento técnico de aeronaves e da
navegação aérea.
1919 Paris – Convenção para regulamentação da navegação aérea.
1927 Iniciou-se a aviação comercial brasileira.
1928 Sobre aviação comercial.
1929 Varsóvia – Sobre unificação de regras do transporte aéreo internacional.
1933 Roma – Sobre unificação de regras sobre apreensão cautelar de aeronaves.
1944 Chicago – Sobre aviação civil internacional. Convenção mais importante.
1941-1945 2ª Guerra Mundial
1948 Genebra – Reconhecimento internacional de direitos em aeronaves de
transporte aéreo.
1952 Roma – Sobre danos de aeronaves estrangeiras a terceiros, na superfície.
1958 Genebra – Sobre direito internacional em alto-mar.
1961 Guadalajara.
1963 Tókio – Sequestros.
1970 Hague - Sequestros
1971 Montreal – Sequestros.
1.2. Princípios Gerais
• Princípio fundamental Soberania sobre espaço aéreo.
Aula 02 – Aeroportos
Apostila de Aeroportos
• Espaço Aéreo Acima do território do país e respectivas águas jurisdicionais.
• Cinco Liberdades do Ar:
1. Uma aeronave tem direito de sobrevoar outro país, sem pousar, contanto que o
país sobrevoado seja notificado antecipadamente e aprove o sobrevoo (Passagem
inocente).
2. Uma aeronave civil de um país tem o direito de pousar em outro país por razões
técnicas, tais como abastecimento ou manutenção, sem proceder a qualquer tipo
de serviço comercial neste ponto de parada (Parada Técnica).
3. Uma empresa aérea tem o direito de carrear o tráfego de seu país de registro para
outro.
4. Uma empresa aérea tem o direito de carrear o tráfego de um país para o seu país
de registro.
5. Uma empresa aérea tem o direito de carrear tráfego entre dois países diferentes do
seu país de registro, desde que o vôo origine ou termine no seu país de registro.
Ainda:
6. Uma empresa aérea tem o direito de carrear tráfego que não se origine ou termine
no seu país de registro, desde que passe através, faça conexão ou permaneça, por
um tempo limitado, em qualquer ponto de seu país de registro.
Existem, porém são raramente permitidos:
7. Uma empresa aérea tem o direito de operar inteiramente fora de seu país de
registro carreando tráfego entre outros países.
8. Uma empresa aérea tem direito de carrear tráfego de um ponto para outro do
mesmo país estrangeiro.
1.3. Organizações Internacionais de Regulamentação da Aviação Civil
1.3.1. Internacional Civil Aviation Organization – ICAO
• Criada em abril de 1947
• As recomendações e padronizações foram agrupadas em 17 anexos técnicos (Anexo
14 é o mais importante)
• Administrada por um conselho e várias comissões e órgãos subsidiários,
subordinados pela assembléia geral.
• Filiada à ONU
Aula 02 – Aeroportos
Apostila de Aeroportos
• Sede em Montreal (Canadá) e mais sedes regionais (Lima-Perú)
1.3.2. Internacional Air Transport Association - IATA
• Criada em abril de 1945 em Havana;
• Agrupamento de empresas de transporte aéreo com a finalidade de coordenar as
atividades de taxações tarifárias, visando uma exploração segura, eficaz e
econômica;
• Dois escritórios centrais: Montreal e Genebra, mais sedes regionais (Rio de
Janeiro);
1.3.3. Federal Aviation Administration - FAA
• Do governo norte-americano;
• Subordinada ao USDOT (www.dot.gov , WWW.faa.gov);
• Regulamentos e circulares técnicas sobre aeronaves, tripulação, espaço e tráfego
aéreo, navegação, administração e aeroportos;
1.3.4. Ministério da Aeronáutica do Brasil
• Criado em 1941 (www.maer.mil.br)
• Estrutura:
o Órgãos de direção geral;
o Órgãos de direção setorial (DAC – Departamento de Aviação Civil; IAC –
Instituto de Aviação Civil);
o Órgãos de assessoramento;
o Órgãos de apoio;
o Força Aérea Brasileira (FAB).
1.3.5. Comando da Aeronáutica do Brasil - COMAER
• Criado em 1999 (www.fab.mil.br)
• Parte do Ministério da Defesa
• Estrutura:
o Departamento de Controle do Espaço Aéreo - DECEA
o Departamento de Aviação Civil – DAC (extinto com a criação da ANAC)
1.3.6.Agência Nacional de Aviação Civil - ANAC
• Criada pela Lei nº 11.182, de 27 de setembro de 2005 (www.anac.gov.br).
Aula 02 – Aeroportos
Apostila de Aeroportos
• Atuará como autoridade aeronáutica da aviação civil.
• Missão – visa o atendimento do interesse público e o desenvolvimento e fomento
da aviação civil, da infraestrutura aeronáutica e aeroportuária do País.
• Estrutura:
o Diretoria Colegiada (4 Diretores e o Diretor-Presidente).
o Superintendências (em número de 6).
o Gerências Regionais (em número de 8).
1.4. Legislação Nacional e Internacional
• Anexo 14: Normas e Recomendações Internacionais – Aeródromos – ICAO Volume
I: Aeródromos e Volume II: Helipontos.
• Advisory Circular – FAA (Projeto de Pavimentos, Planejamento etc.).
• Código Brasileiro de Aeronáutica – 1986 Lei 7.565 de 19/12/1986.
• Portaria nº 256/GC5 de 13/05/2011 (Zona de Proteção de Aeródromos, Auxílios e
Helipontos).
• Resolução nº 158, de 13/07/2010 – Autorização prévia para construção de
aeródromos.
• RBAC 154 – Regulamento Brasileiro de Aviação Civil, ANAC, 2009.
1.5.Evolução do Transporte Aéreo Regular No Brasil
• Origem da Aviação comercial Final da década de 20.
(em 1º de janeiro de 1927, a primeira empresa no Brasil a transportar passageiros foi a
CONDOR SYNDIKAT – Ministro Vitor Konder e outras pessoas – do Rio de Janeiro a
Florianópolis).
1.5.1. Período de 1927 a 1939
• Desenvolvimento da indústria aeronáutica durante a 1ª guerra mundial.
• Desejo ou espírito aeronáutico das autoridades governamentais brasileiras.
• Em 1927 foi criado o código brasileiro do ar.
• Em 1927 Criada a VARIG e a Sociedade Mercantil Sindicato CONDOR Ltda. (mais
tarde CRUZEIRO DO SUL).
• Em 1930 PANAIR do Brasil (faliu)
• Em 1934 VASP
Aula 02 – Aeroportos
Apostila de Aeroportos
1.5.2. Período de 1939 a 1959
• Período de entrada de grande número de empresas, posterior fusão, absorção e
eliminação devido a:
a) Oferta de aviões excedentes da 2ª guerra mundial
b) Aumento da demanda
• Na última metade do período houve diminuição da demanda devido à abertura de
estradas e instalação da indústria automobilística.
• Em 1959 surgiu a ponte-aérea RIO – SP.
1.5.3. Período de 1961 a 1968
• Redução do número de passageiros transportados no mercado doméstico.
• Crise financeira na indústria devido ao processo inflacionário e reforma cambial.
• Busca de solução através de três encontros da CONAC – Conferência Nacional de
Aviação Civil.
1.5.4. Período de 1969 a 1980
• Em 1975 – Fusão VARIG-CRUZEIRO.
• Criação do SITAR – Sistema Integrado do Transporte Aéreo: desenvolvimento do
transporte aéreo regional e incentivo à indústria aeronáutica brasileira (EMBRAER).
• Surgem: TABA / NORDESTE / TAM / VOTEC / SUDESTE / RIO-SUL.
1.5.5. Período de 1981 a 1989
• Prejuízos até 1986 com a implantação do plano cruzado quando ocorreu aumento
considerável da demanda.
• Em 1986 foi realizada a 4ª CONAC.
1.5.6. Período de 1988 a 1998
• Durante o plano cruzado aumento da demanda.
• Período inflacionário diminuição e crise.
• Em 1992 – 5ª CONAC As regionais não precisam mais atuar em áreas
específicas.
• Em 1994 – Plano Real Aumento da demanda.
1.5.7. Período de 1998 a 2004
a) 2000 Criação da Gol
Aula 02 – Aeroportos
Apostila de Aeroportos
b) TRANSBRASIL parou de operar dívida de combustível.
c) TAM menos deficitária maior mercado doméstico.
d) Atentado terrorista (11/09 EUA) com uso de aviões comerciais.
e) Queda da Aviação Civil (Turismo).
f) Intensificação da segurança nos aeroportos.
g) Crise devido ao aumento do dólar desvalorização do Real.
a) Recessão pessoas fazem menos viagens internacionais.
1.5.8. Período de 2005
• Julho de 2005 – entra em operação a empresa WEBJET, de modelo “low cost, low
fare”.
• Agosto de 2005 – começa a funcionar como empresa de voos regulares a empresa
“BRA”, que antes operava somente com voos charter.
• Em 20/07/2005 o mercado era dividido em:
o TAM com 43% do mercado;
o GOL com 29% do mercado;
o VARIG com 26 % do mercado.
• Características de uma empresa “low cost, low fare”:
o não oferece milhagem
o não oferece comida quente durante o vôo. O local dos fornos de aquecimento
da comida é ocupado por assentos.
o homogeneização da frota, o que barateia a manutenção.
o mantém as aeronaves voando o maior tempo possível.
o estimula compra de passagens pela internet, o que reduz gastos com papel e
funcionários.
• Setembro de 2005 - criação da ANAC – Agência Nacional de Aviação Civil (Lei nº
11.182 de 27/09/05).
• VARIG entra em processo de recuperação judicial e vende a VarigLog (transporte
de cargas) e VEM (manutenção) para TAP por US$62 milhões. A TAP ficou com a
VEM por US$ 24 milhões e revendeu a VarigLog por US$48,2 milhões para Voo do
Brasil (3 empresários brasileiros e o fundo americano Matlin Patterson).
Aula 02 – Aeroportos
Apostila de Aeroportos
1.5.9. Período de 2006
• Aumento da demanda em função da baixa do dólar. (valorização do Real)
• Crise na Varig – dívida de aproximadamente 8 bilhões de reais.
• Em julho de 2006 a Varig é dividida em antiga Varig (processo judicial, com as
dívidas) e nova Varig (enxuta).
• A VarigLog controlada pela Volo do Brasil compra a nova VARIG.
• Ocorre acidente com avião da GOL na Amazônia (29/09/2006): houve choque com
aeronave pequena (Legacy) – não há sobreviventes.
• Crise nos aeroportos – ocorrência de grande atraso nos voos – filas enormes –
descontentamento geral dos passageiros
1.5.10. Período de 2007
• Continua a crise nos aeroportos que culmina com a troca de Ministro da Defesa –
novo ministro Nélson Jobim.
• A Empresa GOL compra a nova VARIG em 28/03/2007 por US$320 milhões (R$660
milhões). Após a compra o mercado ficou dividido em:
o Doméstico - TAM com 47,33%, GOL com 44,83%,
o BRA 2,98%, OceanAir 2,24 % e Demais 2,62%.
o Internacional - TAM com 61,01%, GOL com 30,76%,
o BRA 7,89%, OceanAir 2,24 % e Demais 0,34%.
• Ocorre acidente com avião da TAM (17/07/2007) no aeroporto de Congonhas em
SP – em pista molhada avião sai da pista e se choca com posto de gasolina e
hangar da TAM do outro lado da rua e explode – não há sobreviventes.
• Agravamento da crise no transporte aéreo brasileiro leva a substituição dos
Diretores da ANAC e também a criação da Secretaria de Aviação Civil do Ministério
da Defesa para coordenar os órgãos da aviação civil brasileira
(DECEA/ANAC/INFRAERO/Indústria Aeronáutica).
1.5.11. Período de 2008
• Total de PAX 2008 = 113,3 milhões
• 65,5% dos assentos ocupados
• Crescimento global 2,4% na comparação anual
• Mercado doméstico (2,1%) – 100 milhões de PAX:
Aula 02 – Aeroportos
Apostila de Aeroportos
o TAM – 50,4%
o GOL/VRG – 42,4%,
o OceanAir – 2,8%
o WEBJET – 2,5%,
o Azul (início da operação: Dezembro de 2008) – 0,3%.
• Mercado Internacional (5,3%) – 13,3 milhões de PAX:
o TAM – 75,2%
o GOL – 23,9%
• Características da nova CIA aérea:
o Azul – Linhas Aéreas Brasileiras
o Aeronaves EMBRAER
o Frota em 2009:
• 09 ERJ 190 (106 pessoas)
• 05 ERJ 195 (118 pessoas)
o Frota para 2010:
• 21 ERJ
o Frota para 2011:
• 42 ERJ
o Frota para 2013:
• 78 ERJ
o Equipadas com HUD (head up displays) para ambos os pilotos em 100% da
frota.
• Projeta as informações no vidro à frente dos pilotos. Aumenta a
segurança operacional.
o Base operacional em Campinas (Viracopos)
1.5.12. Período de 2009
• Acidente com avião da AIR FRANCE – AF 447 Rio-Paris: Airbus 330 sem
sobreviventes (31/05). Não foram encontradas as caixas pretas.
• Total de PAX 2009 = 128,1 milhões.
Aula 02 – Aeroportos
Apostila de Aeroportos
• 66,8% dos assentos ocupados.
• Crescimento global 13,1% na comparação anual
• Mercado doméstico (15,0%) – 115 milhões de PAX:
o TAM – 45,6%
o GOL/VRG – 42,4%,
o Web Jet – 4,5%
o Azul – 3,8%
o OceanAir – 2,5%
• Mercado Internacional (-1,2%) – 13,1 milhões de PAX:
o TAM – 86,5%
o GOL – 13,4%
1.5.13. Período de 2010
• Fusão TAM com LANCHILE em Março de 2010 = LATAM.
• LATAM
• Voo para mais de 115 destinos em 20 países;
• Frota combinada de 229 aviões;
• 40.000 funcionários;
• AVIANCA
• Início das operações no Brasil.
• Dados do transporte aéreo Brasileiro (ANAC/Jan2011)
• Em 2010 a procura por voos domésticos aumentou 23,47% em relação a 2009. A
demanda por voos internacionais aumentou 20,38% nas rotas internacionais
operadas pelas empresas brasileiras.
• Mercado doméstico:
o TAM – 42,81%
o GOL/VARIG – 39,51%,
o Azul – 6,05%
o Web Jet– 5,87%
o Avianca – 2,59%
Aula 02 – Aeroportos
Apostila de Aeroportos
o Trip – 2,21%
REFERÊNCIAS:
Sória, M. H. A., Silva, I. (1983) Introdução à organização do transporte aéreo, USP-São
Carlos, apostila
Agência Nacional de Aviação Civil – ANAC – Disponível em www.anac.gov.br
INFRAERO – Disponível em www.infraero.gov.br
Aula 02 – Aeroportos
Apostila de Aeroportos
AULA 02
1. Composição de Peso e Desempenho em Cruzeiro
1.1. Definições
Componente do peso bruto
Composto de 3 parcelas:
• Peso Básico Operacional: peso do avião pronto para operar excluindo-se a carga
paga e o combustível utilizável. Inclui estruturas, assentos, equipamentos diversos,
tripulação, copas, enfim, tudo que não seja carga paga e combustível.
• Carga paga: toda carga transportada que produz receita. Compõe-se de
passageiros, bagagem, correio e carga.
• Combustível total: compreende combustível de bloco mais reservas.
Reserva inclui:
o 10% do combustível a se consumir na viagem, para cobrir eventuais diferenças
de consumo durante o vôo;
o Combustível para o vôo até o aeroporto alternativo;
o Combustível para espera, para pelo menos 30 minutos de vôo sobre o
aeroporto a 450 m de altitude, ou de acordo com outro regulamento aplicável.
1.1.1. Limitantes estruturais
• Peso máximo zero combustível: peso máximo que pode ter a aeronave
carregada, porém sem combustível.
• Carga paga máxima estrutural: é o máximo peso que pode ter a carga paga,
seja ela passageiro, carga, correio ou combinação desses itens.
• Peso máximo estrutural de decolagem: peso máximo com qual a aeronave
pode decolar supondo-se que não exista limitante operacional, que na realidade
existem por razões estruturais.
• Peso máximo estrutural de pouso: é o peso máximo com qual a aeronave pode
pousar (supondo-se que não existam limitantes operacionais).
• Peso máximo estrutural de rampa ou de taxi: é o máximo peso pelo qual a
aeronave poderá iniciar o taxi, ou seja, sair dos calços para dirigir-se até a
cabeceira da pista.
Aula 02 – Aeroportos
Apostila de Aeroportos
• Capacidade máxima dos tanques: é o máximo volume de combustível que o
avião admite.
1.1.2. Limitantes operacionais
• Peso máximo de decolagem: sempre menor ou igual ao peso máximo estrutural
de decolagem. Imposto pelo comprimento e declividade da pista, temperatura,
pressão, vento, pneus, condições de subida, condições de frenagem e outras.
• Peso máximo de pouso: sempre menor ou igual ao peso máximo estrutural de
pouso. Imposto pelas condições reinantes no pouso, principalmente o comprimento
e a declividade da pista além do estado da superfície da pista.
1.2. Definições dos Pesos, Segundo Manuais do Airport Planning (Boeing
747 – 1984)
• Peso máximo de táxi, de projeto (PMT): máximo peso para manobras no solo,
limitado pela resistência da aeronave e requisitos de aero-navegabilidade.
• Peso máximo de pouso, de projeto (PMP): máximo peso para pouso, limitado
pela resistência da aeronave e requisitos de aero-navegabilidade.
• Peso máximo de decolagem, de projeto (PMD): máximo peso para a
decolagem, limitado pela resistência e condições de aero-navegabilidade.
• Peso de operação vazio (POV) ou Peso básico operacional (PBO): peso da
estrutura, grupos motopropulsores, mobiliário etc. Excluindo-se combustível usável
e a carga paga.
• Peso máximo zero combustível, de projeto (PMZC): máximo peso permitido,
acima do qual só se pode carregar o avião com combustível usável.
• Carga paga máxima = peso máximo zero combustível – peso de operação
vazio.
• Capacidade máxima de assentos: número máximo de passageiros especificamente
homologados ou previstos para homologação.
• Volume máximo de carga: espaço disponível para a carga.
• Combustível usável: combustível disponível para a propulsão da aeronave.
Aula 02 – Aeroportos
Apostila de Aeroportos
1.3. Desempenho em Cruzeiro
Observar a FIGURA 2.01 – Curva Carga Paga Versus Alcance.
• Existe um limitante máximo para a carga paga, por razões estruturais.
Teoricamente a carga paga máxima estrutural é dada pela diferença entre o peso
zero combustível e o peso vazio de operação (ou peso básico operacional); LINHA
C1-1. Nesta linha o avião decola com peso bruto menor que o máximo estrutural de
decolagem.
• A etapa mais longa que se pode fazer com a carga máxima é obtida quando se
decola com o peso máximo estrutural de decolagem; PONTO 1.
• A partir do ponto 1 não é possível aumentar o peso de decolagem, que já é o
máximo estrutural. Para aumentar a etapa, de A1 a A2, deve-se ter mais
combustível, e por isso, menos carga. LINHA 1-2. Troca-se carga por combustível.
• Se a aeronave fosse carregada com a carga máxima estrutural e todo o
combustível possível (capacidade máxima dos tanques) excederia o peso máximo
estrutural de decolagem. Isto é, com os tanques cheios, mesmos que decole com o
peso máximo estrutural de decolagem, a carga paga será menor que a máxima.
PONTO 2.
Aula 02 – Aeroportos
Apostila de Aeroportos
• Decolando-se com os tanques cheios, a etapa será maior à medida que se diminuir
a carga. LINHA 2-A3. Pra decolagem com os tanques cheios e sem carga, ter-se-á o
máximo alcance vazio. PONTO A3.
• Há aviões que têm ainda uma limitação de carga imposta pelo peso máximo de
pouso que terá ao chegar ao aeroporto de destino. Isto ocorre principalmente nos
aviões de carga, que tem as estrutura reforçada de modo que o peso zero
combustível é próximo do peso máximo de pouso. Ao chegar ao aeroporto de
destino, a carga que pode estar levando deve ser tal que o peso zero combustível
mais o combustível de reserva não ultrapassem o peso máximo estrutural de
pouso. A LINHA 4-5 representa essa situação.
• A curva será C1-4-5-2-A3.
1.4. Pontos Notáveis
C1 – carga paga máxima estrutural
A1 – máxima distância que se pode voar levando-se a carga paga máxima; peso de
decolagem máximo estrutural.
C2 – máxima carga que se pode levar, decolando com o peso máximo de decolagem e
com os tanques cheios. Notar que C2 <C1. A diferença é o combustível para se voar um
pouco mais longe, de A1 para A2.
A2 – máxima distância que se pode voar, decolando com os tanques cheios e peso
máximo estrutural de decolagem.
A3 – máximo alcance vazio: máxima distância que se pode voar sem carga paga e
tendo decolado com tanques cheios.
2. Nomenclatura Utilizada
São termos ou símbolos que tem grande uso no desenvolvimento de trabalhos no
campo aeroportuário.
• A/C: “aircraft”, aeronave;
• Acostamento: faixa lateral nas pistas ou pátios com revestimento tal que evite a
ingestão pelas turbinas de materiais sobre o solo e adequado ao tráfego eventual de
veículos;
• Altitude: a elevação do ponto mais alto das pistas de pouso e decolagem;
• Área de Manobras: composta pelas partes de aeródromo utilizadas para
decolagem, o pouso e o rolamento da aeronave excluindo os pátios;
Aula 02 – Aeroportos
Apostila de Aeroportos
• Área de Movimento: composta pela área de manobras e os pátios, também
chamados de “airside”;
• Bags: “baggages”, bagagens;
• “Clearway”, Zona Desimpedida: área retangular, sob o controle da administração
do aeródromo e preparada de forma a permitir o sobrevoo das aeronaves na fase
inicial de subida, durante a decolagem;
• Declividade: inclinação que o terreno preparado (pavimento) deve dispor
garantindo um rápido escoamento das águas pluviais e prejudicando o mínimo
possível o rolamento da aeronave, são padronizados conforme a categoria da pista;
• Hora-Pico: momento em que a movimentação de determinado setor ou do todo se
apresenta em sua maior intensidade. Para o projeto, não se considera como hora-
pico o período em que tenha ocorrido um máximo eventual;
• Incinerador: equipamento imprescindível nos aeroportos que realizam o
reabastecimento da comissária de aeronaves e nos aeroportos internacionais (para
a queima dos restos de alimentação);
• IFR: “Instrument Flight Rules”, regras de vôo por instrumentos;
• Infraestrutura: (aeronáutica) o aeroporto e demais equipamentos de suporte da
navegação aérea; (aeroportuária) o suporte que promove a subexistência do
aeroporto;
• Pátio: área do aeródromo a céu aberto, destinada ao estacionamento de aeronaves
com o proposto de se efetuar serviços de embarque e desembarque de passageiros,
carga e descarga de bagagens, carga e correio, de reabastecimento de combustível
e de outras necessidades, ou para manutenção;
• Pax: passageiros;
• Pistas: áreas que possibilitam rolamento e corrida para a decolagem, pouso,
frenagem e rolamento até a parada de aeronaves;
• Plano Diretor: conjunto de plantas e relatórios que dispõem o desenvolvimento
físico da obra, no tempo, de forma que se atenda a seus objetivos;
• RVR: “runway visual range”, alcance visual horizontal da pista, mede a visibilidade
horizontal;
• Zona de Parada: “stopway”, área retangular definida sobre o solo, com o início na
extremidade da pista e se estendendo na direção da decolagem, preparada
adequadamente para permitir a passagem eventual da aeronave;
Aula 02 – Aeroportos
Apostila de Aeroportos
• TECA: Terminal de cargas;
• Temperatura de Referência: temperatura determinada para um aeródromo
correspondente à média das máximas diárias do mês mais quente (aquele que tem
a maior média das médias diárias);
• TPS, TEPAX: Terminal de passageiros;
• Teto: visibilidade vertical, altura das nuvens;
• Vento: fator importante nas operações de pouso e decolagem. Favorável quando
ocorre na mesma direção, mas em sentido contrário;
• VFR: “Visual Flight Rules”, regras de vôo visuais;
• Zoneamento: atribuição de áreas para tarefas específicas tornando mais eficiente a
movimentação geral e o desenvolvimento das atividades.
3. Classificações
Para o atendimento das mais diversas finalidades foram criadas várias
classificações de aeroportos e/ou pistas:
3.1. Segundo a 1019
Para efeito de projeto e construção de aeródromos, deverão ser observadas as
seguintes bases de correlação entre os parâmetros comprimento mínimo de pista
(metros) e largura mínima (em metros):
A – 2100 e 45 B – 1500 e 45 C – 900 e 30
D – 750 e 23 E – 600 e 18
3.2.Operacional
Segundo o Anexo XIV da ICAO (5) temos:
3.2.1. Pista de Pouso por Instrumentos
Destinada à operação de aeronaves utilizando auxílios não visuais e compreendendo:
• Pista de Aproximação por Instrumentos – servida por um auxílio não visual e
possuindo pelo menos orientação direcional adequada a uma aproximação reta;
• Pista de Aproximação de Precisão – CAT 1 – servida por auxílios de aproximação
ILS ou GCA e auxílios visuais, destinadas a operações até uma altura de decisão de
60m (200 pés) e um RVR de até 800m (2600 pés);
Aula 02 – Aeroportos
Apostila de Aeroportos
• Pista de Aproximação de Precisão – CAT II – altura de decisão de 30m (100 pés) e
um RVR de até 400m (1300 pés);
• Pista de Aproximação de Precisão – CAT III – não sendo aplicável altura de precisão
e
Com auxílios visuais destinada a operar com RVR de até 200m (700 pés) – A;
Com auxílios visuais destinada a operar com RVR de até 50m (150 pés) – B;
Destinada a operar sem auxílios visuais, com radar – C.
3.2.2. Pista para Pouso sem Instrumentos
Destinada a operação de aeronaves usando procedimentos para aproximação visual.
3.3. ICAO
A partir de 1983, a classificação adotada pela ICAO tem composição alfanumérica.
O Anexo XIV (“Aerodromes”) estabelece quase todos os requisitos geométricos em
função dessa classificação.
Tabela 1: Classificação ICAO
Código
Comprimento de
pista de Referência
(m)
Código
Envergadura
(m)
Distância entre os
bordos externos do
trem Principal (m)
1 Menos de 800 A Menos de 15 Menos de 4,5
2 800 até 1199 B 15 a 23 4,5 a 5,9
3 1200 até 1799 C 24 a 35 6,0 a 8,9
4 mais de 1800
D 36 a 51
9,0 a 14,0
E 52 a 60
Aula 02 – Aeroportos
Apostila de Aeroportos
Tabela 2: Relacionamento entre Característica da Aeronave e do Aeroporto
Característica Física do Aeroporto Característica da Aeronave
Comprimento de Pista Potência / Peso e Projeto da Asa
Largura de Pista Bitola e envergadura
Largura de Taxi Bitola e envergadura
"Fillets"1
Base
Largura do Acostamento Posição do motor externo
Separações entre aeronaves Envergadura e comprimento
Gradiente de Pista Trem de pouso e velocidade no solo
Pontes Peso
Pavimento Peso e Trem de pouso
Posições de Estacionamento Envergadura
Característica dos Equipamentos Característica da Aeronave
Pontes de Embarque Altura da Porta
Balizamento Posição do piloto e Altura do motor
Hidrantes de Combustível Ponto de Abastecimento
Energia Elétrica Ponto de Alimentação
Ar Condicionado Ponto de Alimentação
Equipamentos de Combate a Incêndio Característica da Aeronave
Quantidade de Agente Comprimento e Largura da Fuselagem
Número de veículos Comprimento e Largura da Fuselagem
PBO = Peso Básico Operacional.
PMD = Peso Máximo de Decolagem.
REFERÊNCIAS:
Sória, M. H. A. (1983) Composição de peso e desempenho em cruzeiro, USP-São
Carlos, apostila
1
Fillets: Preenchimento feito nas curvas entre pista de pouso e decolagem com a pista de táxi para evitar que
as rodas da aeronave não saiam do pavimento.
Tabela 3: Distribuição de Peso para Algumas Aeronaves de Transporte que
operam no Brasil
Aeronave
Peso máx. de
Decol. (Kgf.)
Fração
PBO /
PMD
Faixa de
Alcance (Km)
BOEING 747-200B 356000 0,49 8704
BOEING 727-200 86860 0,51 3704
BOEING 737-200 52620 0,50 2963
FOKKER F.27 11250 0,62 1296
BANDEIRANTE 5670 0,63 1296
Aula 03 - Aeroportos
Apostila de Aeroportos
29
AULA 03
1. Introdução à Mecânica de Locomoção do Avião
1.1. O Avião
O avião é um veículo que voa graças à força de sustentação obtida pelo efeito dinâmico
das asas sobre o ar, ou seja, pela ação mútua de forças entre o ar, fluido e o avião,
corpo em movimento.
1.2. Componentes
• Asas (fixas) que geram as forças de sustentação para o vôo.
FIGURA 3.01 – Tipos de asas.
• Superfícies móveis (elerões, elevadores, lemes, flapes) para controlar a atitude
da aeronave.
• Sistema propulsor para fornecer tração ou empuxo necessário ao deslocamento
no ar.
• Fuselagem: corpo que liga estruturalmente as outras partes do avião e abriga a
tripulação, carga, passageiros, sistema de controle, instrumentos e sistema de trem
de pouso.
Aula 03 - Aeroportos
Apostila de Aeroportos
30
FIGURA 3.02 – Avião: Nomenclatura e principais dimensões.
FIGURA 3.03 - Tipos de fuselagens
1 - para vôo subsônico 2 - para vôo supersônico 3 - para vôo subsônico e grande capacidade
de carga
4 - para vôo supersônico e alta capacidade de manobra 5 – Hidroavião 6 - para vôo
hipersônico.
Aula 03 - Aeroportos
Apostila de Aeroportos
31
1.3. Noções de Mecânica de Vôo
Um Corpo imerso num fluido está sujeito a:
Forças Normais – Pressão
Forças Tangenciais – Atrito
Resultante: dividida em dois componentes (admitindo-se que não haja força lateral)
• 1ª - De Sustentação atua na direção ortogonal à da velocidade. Sustenta o avião
em vôo.
• 2ª - De Arrasto em direção paralela à velocidade. Deve ser vencida pela tração
dos motores.
1.3.1. Aerofólios
• Partes do avião destinadas a produzir sustentação (mas que geram também
arrasto) como as asas, estabilizadores, hélices e outras. Tem forma achatada,
alongada e perfil típico.
1.3.1.1. Forças que atuam sobre a superfície de um aerofólio
• Forças Normais: de pressão em reação à pressão do escoamento livre.
• Forças Tangenciais: de atrito e cisalhamento.
• Forças de Pressão: devidas às diferenças de velocidade no dorso e no ventre do
aerofólio.
o No dorso (superfície de cima) a velocidade de escoamento é maior que a do
escoamento livre, aparecendo, portanto uma Pressão Negativa.
o No ventre a velocidade de escoamento é menor que a do escoamento livre,
acarretando uma Pressão Positiva.
o A Pressão Negativa do dorso e Positiva no ventre são responsáveis pela força
de sustentação e por parte da força de arrasto (arrasto de pressão ou de
forma).
o Devido ao escoamento do ar em contato com o aerofólio aparecem as forças
tangenciais.
o O ar incidindo tangencialmente ao corpo sofre uma desaceleração na região de
contato fazendo aparecer uma força.
• Os vetores paralelos à superfície do aerofólio representam as forças de atrito por
unidade de área que agem essencialmente na direção paralela ao escoamento,
chamado de arrasto de atrito.
RESULTANTERESULTANTERESULTANTERESULTANTE
Aula 03 - Aeroportos
Apostila de Aeroportos
32
FIGURA 3.04 – Escoamento.
ESCOAMENTO
VÔO
v
v
Ângulo de Ataque
DOWNWASH
FIGURA 3.05 – Esforços.
Pressão (Relativa) negativa
VÔO
v
Pressão (Relativa) positiva
Esforço de Cisalhamento
FIGURA 3.06 - Forças de Sustentação e Arrasto.
Ângulo de Ataque
VÔO
v
D
ARRASTO (Força)
SUSTENTAÇÃO
(Força)
L
FORÇA
RESULTANTE
Nota: Unicamente no caso particular do vôo em nível, ter-se a o escoamento e o
arrasto na horizontal e a sustentação na vertical. Vôo em nível não implica
forçosamente corda na horizontal ou qualquer outra atitude particular da aeronave.
Aula 03 - Aeroportos
Apostila de Aeroportos
33
1.3.1.2. Elementos do Aerofólio e do Seu Perfil
• Velocidade Aerodinâmica: é a velocidade de escoamento do ar em relação ao
aerofólio, fora da zona de perturbação por ele causada.
• Corda Geométrica: linha de referência do perfil. Medida da largura do aerofólio.
• Ângulo de Ataque: ângulo entre a corda e a velocidade aerodinâmica.
• Área ou Superfície Alar: é a área em projeção no plano das cordas, que é usado
como referência.
• Alongamento: é a medida da forma do aerofólio no plano das cordas. É dado por:
( )
)gulartanreasa/p(
Corda
aEnvergadur
A
alarSuperfície
aEnvergadur
A
2
=
=
• Perfil: é a forma da seção transversal do aerofólio na direção do escoamento e em
plano perpendicular ao plano das cordas. Assim, as características de sustentação e
arrasto dependem fundamentalmente do Perfil. (ver figura 3.07)
FIGURA 3.07 - Aerofólio.
Aula 03 - Aeroportos
Apostila de Aeroportos
34
1.3.1.3. Quantidade das Forças que Atuam em um Aerofólio
s.q
D
C
s.q
L
C DL ==
CL: Coeficiente de Sustentação (adimensional)
CD: Coeficiente de Arrasto (adimensional)
L: Sustentação (força)
D: Arrasto (força)
q: Pressão Aerodinâmica
2
v..
2
1 ρ=
s: Área de referência. Para as asas Superfície alar.
Então:
s.v..
2
1
.CD
s.v..
2
1
.CL
2
D
2
L
ρ=
ρ=
No Sistema MKS:
D,L em Kgf.
S em m²
V em m/s
ρ em Kgf.m-1.s² (UTM / m³)
No Sistema Internacional – SI
D,L em N
S em m²
V em m/s
ρ em Kg/m³
As curvas características dos perfis são obtidas experimentalmente e podem
ainda ser dadas para um determinado alongamento (A). São apresentadas como na
Figura 3.08.
ρ : Massa específica do ar (massa / volume)
v: Velocidade aerodinâmica(velocidade)
Aula 03 - Aeroportos
Apostila de Aeroportos
35
FIGURA 3.08
COORDENADAS EM % DA CORDA E DESENHO DO PERFIL N.A.C.A. 23012
Aula 03 - Aeroportos
Apostila de Aeroportos
36
DETALHE DO BORDO DE ATAQUE
ADAPTADO DO REPORT Nº 669 DA NATIONAL
ADVISORY COMMITTE FOR AERONAUTIC, N.A.C.A.,
U.S.A.
Pode-se também expressar o coeficiente CD em função do CL na curva conhecida
como Polar do Perfil, na qual se tira o maior valor da relação CL / CD e o respectivo
ângulo de ataque.
1.3.2. Forças que Atuam no Avião
Apesar de a sustentação ser produzida pelas asas, todo avião sofre arrasto.
Arrasto Total = Asas + Fuselagem + Lemes + Estabilizadores + Trem de pouso
O que se deseja é um coeficiente de arrasto associado a uma superfície de
referência, de modo que as expressões para o arrasto sejam:
RD
2
S.C.v..
2
1
D ρ=
CD: Coeficiente de arrasto dado em função de determinada superfície de referência.
SR: Superfície usada como referência.
CORDA DORSO VENTRE
0,0 - 0,00
1,3 2,67 -1,23
2,5 3,61 -1,71
5,0 4,91 -2,26
7,5 5,80 -2,61
10,0 6,43 -2,92
15,0 7,19 -3,50
20,0 7,50 -3,97
25,0 7,60 -4,28
30,0 7,55 -4,46
40,0 7,14 -4,48
50,0 6,41 -4,17
60,0 5,47 -3,67
70,0 4,36 -3,00
80,0 3,08 -2,16
90,0 1,68 -1,23
95,0 0,92 -0,70
100,0 -0,13 (-0,13)
100,0 - 0,00
Aula 03 - Aeroportos
Apostila de Aeroportos
37
FIGURA 3.09 – Superfície de referência para estimativa do arrasto: Fuselagem.
1.3.2.1. Eficiência Aerodinâmica
Parâmetro de grande importância para expressar o desempenho aerodinâmico do
avião, ou também chamada de Razão Sustentação / Arrasto.
D
L
totalD
asaL
total
asa
C
C
Etesimplesmenou
C
C
D
L
E ===
,
,
A eficiência aerodinâmica de um determinado avião depende do N° de Reynolds
(Rey) e de Mash (M). Para Rey e Mash constantes será em função do ângulo de ataque.
Nos aviões subsônicos a eficiência máxima está tipicamente entre 10 e 25,
enquanto que nos aviões supersônicos é da ordem de 5 a 10.
1.3.2.2. Força de Tração e Potência Necessária ao Vôo
O grupo Moto-Propulsor fornece a força para acelerar o avião e mantê-lo em vôo,
contrariando o arrasto. Nos motores o pistão costuma dar potência em HP, para os
Turbo-Hélices em HP equivalentes, enquanto que nos Turbo-Jatos e Turbo-Fans não se
fala em potência, mas sim em tração (força).
A potência média necessária para o vôo é dada pela seguinte expressão:
Potência = Força de Tração x Velocidade Aerodinâmica
Para o vôo retilíneo em nível com a velocidade constante, como já foi mostrado, a
tração deve ser igual ao arrasto e a potência será:
P = D.V
Aula 03 - Aeroportos
Apostila de Aeroportos
38
FIGURA 3.10 – Duas condições limites do vôo retilíneo em nível.
Velocidade grande, ângulo de ataque
pequeno
Baixa velocidade, ângulo de ataque
grande
FIGURA 3.11a – Forças: Vôo não acelerado, em um plano horizontal (ou em
nível) (supondo-se que não haja forças laterais).
PESO
W
FORÇA
ESTABILIZADORA
ARRASTO
D
T
TRAÇÃO
SUSTENTAÇÃO
L
Aula 03 - Aeroportos
Apostila de Aeroportos
39
FIGURA 3.11b
ARRASTOTRAÇÃO
SUSTENTAÇÃO
L
PESO
W
L = W
T = D
T D
1.3.2.3. Estol
Avião em velocidade mínima ângulo de ataque grande CL máximo.
o O avião voando com CLmáx tem um aumento do ângulo de ataque (proporcional
ou acidental).
o Com o ângulo de ataque maior que 2 x CLmáx há uma perda de sustentação e o
avião começa a cair.
o Pelo fato do avião ter o centro de massa convenientemente localizado e pelas
forças de arrasto nessa situação aplicados atrás do centro de massa, durante a
queda apontará o nariz para baixo.
o Adquire assim, situação de vôo descendente com ângulo de ataque menor que
CLmáx e poderá gradativamente voltar ao vôo em nível.
o Para recuperar a condição de vôo perde-se altura, que depende das características
do avião e é geralmente significativa. Deve-se evitar o estol nos voos normais.
Aula 03 - Aeroportos
Apostila de Aeroportos
40
FIGURA 3.12 – Duas condições limites do vôo retilíneo em nível.
o
Velocidade grande, ângulo de ataque
pequeno
Baixa velocidade, ângulo de ataque
grande
W = 5000 kgf [49035 N]
ρ = 0,092 kgf m-4
s² [0,90 kg/m³]
Asa = perfil NACA 23012
S = 30 ²
Para V = 400 km/h (velocidade máxima)
Tem-se CL = 0.30 e portanto α = 3º
Nota: Essa é a situação de velocidade máxima,
limitada pela potência disponível, para esse ρ.
Para CL =1,55 (CLmáximo) e
portanto α = 21º tem-se:
V= 48,35 m/s = 174 km/h
Nota: Essa é a situação de velocidade mínima
(CLmáximo) para esse ρ.
REFERÊNCIAS:
Sória, M. H. A. (1983) Introdução à mecânica de locomoção do avião, USP-São Carlos,
apostila
Aula 05 - Aeroportos
Apostila de Aeroportos
41
AULA 04
1. Dimensionamento do Comprimento De Pista
1.1. Comprimento de Pista
• Iniciada a decolagem, abortar e parar com segurança;
• Completar a decolagem e iniciar a subida, também com segurança.
Observar as figuras 4.01 e 4.02.
FIGURA 4.01 – Decolagem com falha de 1 motor em V1.
A
V1 VR
B C
VLOF
V2
10.70m
ZYX
L/2
CORRIDA DE DECOLAGEM
DIST. DE ACELERAÇÃO E PARADA
DIST. DE DECOLAGEM
D
L
,
FIGURA 4.02 – Decolagem com todos os motores (sem falha).
A
VR
V2
10.7m
d'1
d'2
X' Z'
VLOF
1. Estando o avião parado na cabeceira da pista, ponto A, o piloto imprime toda a
potência aos motores e o avião inicia a corrida de decolagem.
2. Se uma falha de um motor com perda súbita e total de potência for identificada
pelo piloto exatamente ao atingir a velocidade de decisão V1, deve ele escolher
uma dentre as duas alternativas: interromper ou continuar a decolagem.
Aula 05 - Aeroportos
Apostila de Aeroportos
42
o Se o piloto decidir frear, o avião correrá na pista até parar no ponto Y. A
distância AY é chamada de “distância de aceleração e parada”.
o Se decidir continuar a decolagem com um motor inoperante, o avião acelerará
até atingir a velocidade de rotação, VR (ponto C) com a qual é possível erguer
o nariz da aeronave aumentando o ângulo de ataque e ao alcançar a velocidade
de decolagem, VLOF e iniciar o vôo, ponto D, vindo a passar sobre o ponto Z
com uma altura de 10,70m e velocidade igual ou maior que V2. A distância AZ
é chamada “distância de decolagem”.
3. Se a falha de um motor ocorrer antes da velocidade V1 o piloto interromperá a
decolagem aplicando os dispositivos de frenagem vindos a parar antes do ponto Y.
A decolagem deve ser abortada porque a velocidade é insuficiente e não há
condições de aceleração com a potência reduzida.
4. Se a falha ocorrer depois de atingida a velocidade V1,a decolagem deverá
prosseguir e o avião sobrevoará o ponto Z com uma altura maior que 10,70m (35
pés). A decolagem deve continuar uma vez que o avião adquiriu velocidade
suficiente e que seria difícil ou até impossível parar na distância disponível.
5. Se, como se dá normalmente, não ocorrer falha de motor, o avião correrá até
atingir VR, VLOF e V2, decolando. Quando não há falha as distâncias para alcançar
VR, VLOF e V2 são menores do que no caso de falha de um motor.
1.2. Definições
• V1 - Velocidade de decisão: velocidade escolhida pelo operador à qual admite-se
que, ao ser reconhecida pelo piloto uma perda súbita e total de potência de uma
unidade motopropulsora, é possível frear o avião ou continuar a decolagem sem o
motor crítico.
• VR - Velocidade de rotação: velocidade à qual o piloto inicia a rotação da
aeronave, levantando o nariz, tirando do chão as rodas do nariz.
• VLOF - Velocidade para deixar o solo ou de decolagem: velocidade à qual se
tira o avião da pista, isto é, inicia o Vôo propriamente dito sustentando-se no ar.
(lift-off speed).
• V2 - Velocidade de subida: velocidade mínima com a qual o piloto pode dar início
à subida depois de Ter passado a 10,70m de altura sobre a superfície da pista
durante uma decolagem com um motor inoperante.
o Esta deve ser mantida até que o avião chegue a uma altura de 122 m (400
pés).
Aula 05 - Aeroportos
Apostila de Aeroportos
43
Num diagrama típico de velocidades na decolagem, entra-se com a pressão,
temperatura e peso bruto de decolagem e tira-se VR, V2 e V1/VR.
1.3. Comprimento de Pista Balanceada
FIGURA 4.03 – Comprimento de Pista Balanceada.
• Quando Y e Z são coincidentes tem-se o comprimento de pista balanceada com
falha de um motor.
> V1 > distância de aceleração e parada.
> V1 < distância de decolagem.
V1 ou V1/VR dado no manual da aeronave. Fornece o comprimento de pista
balanceado.
1.3.1. Decolagem sem Falha
• Com todos os motores funcionando.
• Corrida de decolagem é definida como 115% da distância para atingir VLOF + l/2.
1.3.2. Conclusões
• O comprimento de pista de decolagem é o maior dentre:
o Comprimento balanceado de pista
o 115 % da distância de decolagem com todos os motores.
• A corrida de decolagem é a maior dentre:
o Distância para atingir VLOF + l/2, com falha em V1
o 115 % da distância para atingir VLOF + l/2 sem falha.
Aula 05 - Aeroportos
Apostila de Aeroportos
44
1.4. Comprimento da Pista para Pouso
• O avião sobrevoa a cabeceira da pista passando à altura de 15m (50 pés), com
velocidade constante igual a 1,3VS (1,3 velocidade de estol) para as condições de
pouso.
• O comprimento da pista para pouso é tal que a aeronave nestas condições pouse e
pare em 60 % do comprimento de pista disponível para pouso.
FIGURA 4.04 – Comprimento de pista para o pouso.
1.3 Vs
15m
Avião Parado
0.4 L0.6 L
COMPRIMENTO DE PISTA PARA POUSO - L
É dado pelos manuais: depende do estado da superfície da pista, do peso bruto
máximo para pouso, da pressão e temperatura do ar na pista, da posição dos flaps e
funcionamento de certos dispositivos de frenagem.
1.5. Procedimento de Subida
FIGURA 4.05 – Procedimento de Subida
Aula 05 - Aeroportos
Apostila de Aeroportos
45
2. Determinação do Comprimento de Pista Necessário – Desempenho na
Decolagem
2.1. Determinantes do Comprimento de Pista
Características do avião:
• Capacidade de aceleração
> relação potência peso < comprimento
• Capacidade de alçar vôo
Carga alar = relação área da asa por unidade de peso
> carga alar < comprimento
• Capacidade de frenagem depois de atingir determinada velocidade e a resistência
dos pneus
> capacidade Frenagem < comprimento
Tendo-se:
Um determinado avião e uma determinada pista “efetivamente” construída:
• Qual é o máximo peso bruto que pode Ter o avião para decolar?
• A pista é suficiente para se decolar com determinado peso bruto?
Respostas: nos ábacos de desempenho do manual de operação da aeronave.
O comprimento de pista necessário para a decolagem depende:
• Do avião;
• Da operação:
o Do peso bruto de decolagem;
o Das condições operacionais específicas como posição dos flapes, tipo de pneu,
V1...
• Da pista:
o Declividade da pista;
o Condições de atrito do pavimento.
• Das condições atmosféricas;
o Altitude (pressão) do aeródromo;
o Temperatura do ar externo;
Aula 05 - Aeroportos
Apostila de Aeroportos
46
o Vento: direção e intensidade.
Observar figura 2: são gráficos publicados nos manuais tipo “Airport planning”.
Considera-se:
• Pista em nível;
• Vento zero;
• Usa-se: atmosfera-padrão.
tn = (15 – 0,0065 h) (graus centígrados)
tn = temperatura na altitude h em grau centígrado
h = altitude em m.
2.2. Fatores que Determinam o Comprimento de Pista para Decolagem
• O avião e sua operação
o Área alar, forma, superfície, volumes e potência das turbinas etc;
o Peso bruto de decolagem.
• Pressão (Altitude)
< pressão do ar > altitude < densidade do ar
A densidade do ar afeta o desempenho aeronáutico da aeronave e o desempenho dos
motores.
• Temperatura
Afeta a densidade do ar e o rendimento térmico dos motores.
• Vento
A direção do vento faz certo ângulo com a pista.
o 2 componentes do vento: paralela e transversal.
o Componente transversal (de través): é prejudicial.
o Componente longitudinal:
- Auxilia a operação: quando se opera contra o vento.
- Prejudica a operação: quando se opera a favor do vento, requer maior
comprimento de pista.
• Declividade:
Declividade longitudinal de grandes aeródromos: até 1,5%.
Aula 05 - Aeroportos
Apostila de Aeroportos
47
2.3. Comprimento de Pista a Ser Construído
O projetista deve trabalhar com as condições “médias” ou as “menos” favoráveis.
• Temperatura de referência do aeródromo: Média mensal das temperaturas
máximas diárias do mês mais quente do ano (aquele que tem a maior média
mensal), feita para um período de vários anos.
• Altitude: do ponto mais alto da área de pouso.
• Vento: condições menos favoráveis que é o vento nulo.
• Declividade: condições menos favoráveis = operação em subida.
FIGURA 4.06
Trata-se de um ábaco tirado do manual de operações da aeronave.
Apostila de Aeroportos
FIGURA 4.06 – Desempenho na Decolagem
se de um ábaco tirado do manual de operações da aeronave.
Aula 05 - Aeroportos
48
Aula 05 - Aeroportos
Apostila de Aeroportos
49
• Informações necessárias:
o Temperatura de referência do local
o Altitude geométrica
o Declividade média da pista
• Entrada:
o Peso bruto do avião (geralmente o máximo de decolagem)
• Saída:
o Comprimento de pista necessário.
Manuais das aeronaves “BOEING”
www.boeing.com/products/aircompat/plan_manual.html (download)
Aula 05 - Aeroportos
Apostila de Aeroportos
50
FIGURA 4.07 – Decolagem: Comprimento de Pista Necessário (F.A.R) BOEING
747-200 (JT9D-70)
Nota: Condicionamento de Ar Desligados, Pista em Nível e Vento Zero.
Aula 05 - Aeroportos
Apostila de Aeroportos
51
3. Fatores de Correção (segundo ICAO)
Adotado quando os dados de entrada não são adequadamente retratados pelo
ábaco disponível.
• Correção para altitude (fa)
Adoção de um fator de acréscimo do comprimento de pista de decolagem de 7%
para cada 300m de elevação.
• Correção para a temperatura (ft)
Adoção de um fator de acréscimo do comprimento de pista de decolagem de 1%
para cada grau Centígrado que a temperatura de referência do local do estudo exceder
a temperatura padrão do local (T).
T=15°C - 0,0065 h
h = altitude do local
• Correção para a declividade (fd)
Adoção de um fator de acréscimo do comprimento de pista de decolagem de 10%
para cada 1% da declividade longitudinal da pista, obtida pela razão entre a diferença
da cota máxima e cota mínima da pista pelo seu comprimento.
CORREÇÂO GLOBAL (FG)
FG = (1 + fa) x (1 + ft) x (1 + fd).
Quando (1+fa) x (1+ft) resultar num acréscimo do comprimento de pista de
decolagem de mais de 35% realizar um estudo especial.
4. Nomenclatura Conhecida
• Distância de decolagem – TODA:
A partir da imobilidade até atingir 10,7 m de altura, com falha de um motor
115% dela – sem falha
• Distância de Rolagem de decolagem – TORA:
A partir da imobilidade até atingir o ponto médio entre vlof e o ponto V2 onde atinge
10,7m de altura – com falha de um motor / 115% dela – sem falha
Também conhecida como corrida de decolagem.
• Distância de aceleração e parada – ASDA:
Aula 05 - Aeroportos
Apostila de Aeroportos
52
A partir de Imobilidade até a velocidade de falha de um motor, com ocorrência
imediatamente antes de V1 e desacelelar a aeronave até a imobilidade novamente.
A diferença entre TODA e Tora é a extensão do CLEARWAY necessário para a
operação de decolagem.
Quando ASDA > TORA, a diferença entre ASDA e TORA representa, para cada V1,
a extensão do STOPWAY necessário.
5. Pistas de Pouso / Decolagem
5.1. Código de Referência do Aeródromo
O objetivo do código de referência é proporcionar um método simples para
relacionar entre si as numerosas especificações relativas às características do
aeródromo, de modo a prover uma série de instalações aeroportuárias compatíveis com
os aviões destinados a operar no aeródromo.
O código é composto de dois elementos que se relacionam com as características
e dimensões da aeronave.
O elemento 1 é um número baseado no comprimento da pista de
pouso/decolagem de referência do avião e o elemento 2 é uma letra baseada na
envergadura do avião e na distância externa entre as rodas do trem de pouso principal.
CÓDIGO DE REFERÊNCIA DO AERÓDROMO
ELEMENTO 1 DO CÓDIGO ELEMENTO 2 DO CÓDIGO
NÚMERO
DO
CÓDIGO
(1)
COMPRIMENTO
DA PISTA DE
REFERÊNCIA
DO AVIÃO (2)
LETRA
DO
CÓDIGO
(3)
ENVERGADURA
(4)
MEDIDA
EXTERIOR ENTRE
AS RODAS DO
TREM DE POUSO
PRINCIPAL
1 Menos 800m A
Até 15m
(exclusive)
Até 4,5m (exclusive)
2
De 800m até
1.200m
(exclusive)
B
De 15m até 24m
(exclusive)
De 4,5m até 6m
(exclusive)
3
De 1.200m até
1.800m
(exclusive)
C
De 24m até 36m
(exclusive)
De 6m até 9m
(exclusive)
4
De 1.800m em
diante
D
De 36m até 52m
(exclusive)
De 9m até 14m
(exclusive)
E
De 52m até 65m
(exclusive)
De 9m até 14m
(exclusive)
F
De 65m a 80m
(exclusive)
De 14m a 16m
(exclusive)
Aula 05 - Aeroportos
Apostila de Aeroportos
53
5.2. Largura da Pista de Pouso / Decolagem
A largura das pistas de pouso/decolagem não deverá ser menor do que a
dimensão apropriada especificadas na tabela a seguir.
NÚMERO
DO
CÓDIGO
LETRA DO CÓDIGO
A B C D E F
1° 18m 18m 23m - - -
2° 23m 23m 30m - - -
3° 30m 30m 30m 45m - -
4° - - 45m 45m 45m 60m
* A largura das pistas de aproximação de precisão não deverá ser menor do que 30m,
quando o numero do código for 1 ou 2.
rbac_154.pdf página da “ANAC” (Regulamento Brasileiro da Aviação Civil – Resolução
nº 93, de 11 de Maio de 2009).
REFERÊNCIAS:
Sória, M. H. A. (1983) Comprimento de pista – Partes 1 e 2, USP-São Carlos, apostila
Aula 05 - Aeroportos
Apostila de Aeroportos
54
AULA 05
1. Configuração Do Aeroporto
A configuração do aeroporto depende da forma, do tamanho e do sítio disponível
bem como de algumas considerações operacionais.
• Configuração de Pistas de Pouso e Decolagem
o Orientação
o Quantidade
• Pistas de Táxi
o Pistas de táxi-saída
o Pátios de espera
o Evolução do sistema de pistas de táxi
• Localização do Pátio de Aeronaves / Área Terminal
• Terminal de passageiros
• Modo de estacionamento de aeronaves
• Terminal de Carga
• Instalações de Apoio
1.1. Configuração de Pistas de Pouso:
1.1.1. Objetivos do Planejamento
• Segurança nas operações de aeronaves
o Separação adequada do tráfego aéreo
o Condição para livrar obstáculos
o Provisão de pista para vento de través
• Pouca interferência e atraso nas operações de aeronaves
• Minimizar movimentos de terra (custos de construção)
• Evitar sobrevoo de áreas sensíveis ao ruído
1.2. Orientação de Pistas
As pistas devem ser orientadas de modo que as aeronaves possam pousar pelo
menos 95% do tempo com componente de vento de través menor ou igual a:
Aula 05 - Aeroportos
Apostila de Aeroportos
55
Comprimento de Referência da
Pista
Componente de Vento de través
permitido
> 1.500 m 20 nós
1.200 a 1.499 m 13 nós
< 1.200 m 10 nós
1.2.1. Determinação Gráfica da Orientação da Pista
1. Obter os dados de vento (de pelo menos 5 anos);
2. Analisar e agrupar os dados por direção e velocidade;
3. Marcar as porcentagens de vento no setor apropriado na Rosa dos Ventos;
4. Traçar numa tira transparente 3 retas paralelas equidistantes, na mesma escala da
Rosa de Ventos(com largura em escala = 2 x vento través(T) = (T+T);
5. Colocar a tira transparente sobre a Rosa dos Ventos de forma que a linha paralela
mediana passe pelo seu centro;
6. Observar, girando a tira transparente, a direção para a qual a soma das
porcentagens fora das linhas externas corresponda a um mínimo;
7. Ler a orientação da pista, na escala externa da Rosa dos Ventos, indicada pela linha
central da tira transparente;
8. Ajustar a orientação à declinação magnética, a fim de obter o rumo correto da
pista;
9. Se a porcentagem obtida no “passo n° 6” for maior que 5%, determinar a
orientação da pista para vento de través (pista secundária) do mesmo modo, com
exceção de que deverá ser observada nesse caso a soma das porcentagens de
vento que ficarem fora das paralelas que definiram a 1ª orientação e das que
definirem a 2ª orientação da pista.
Aula 05 - Aeroportos
Apostila de Aeroportos
56
PERCENTAGE OF WINDS
WIND
DIRECTION
0-4
mph
4-15
mph
15-20
mph
20-25
mph
25-35
mph
Total
CALMS 19.5 - - - - 19.5
N - 3.3 1.1 0.4 + 4.8
NNE - 1.8 0.3 + - 2.2
NE - 1.6 1.0 + + 2.7
ENE - 1.4 0.2 + + 1.7
ENE - 1.7 0.1 + - 1.8
ESSE - 1.6 0.1 + - 1.8
SE - 2.5 0.4 + + 3.0
SSE - 1.8 0.4 + - 2.2
S - 4.3 1.4 0.1 - 5.8
SSW - 3.0 1.1 0.1 + 4.3
SW - 4.3 1.4 0.4 + 6.1
WSW - 2.9 1.2 0.1 + 4.3
W - 4.0 2.8 0.4 0.1 7.3
WNW - 4.8 5.4 0.7 0.2 11.1
NW - 6.0 5.9 0.6 0.1 12.6
NNW - 3.6 4.7 0.4 + 8.8
Total 19.5 48.6 27.5 3.6 0.8 100.0
MPH = NÓ
Aula 05 - Aeroportos
Apostila de Aeroportos
57
FIGURA 5.01
FIGURA 5.02 – Efeitos do Vento na Aproximação e Pouso.
LEGENDA:
Vv = velocidade do vento
Vvt = componente transversal do vento (perpendicular ao eixo da pista)
Vvl = componente longitudinal do vento
Va = velocidade aerodinâmica do avião
Vat = componente transversal da velocidade do avião
Val = componente longitudinal da velocidade do avião
Va solo = velocidade do avião em relação ao solo = Val – Vvl
Aula 05 - Aeroportos
Apostila de Aeroportos
58
FIGURA 5.03 – Trajetória Obtida se a Proa Coincidir com o Prolongamento do
Eixo da Pista.
FIGURA 5.04 – Anemograma do Local A (Tabela Abaixo)
Aula 05 - Aeroportos
Apostila de Aeroportos
59
DIREÇÃO DO VENTO
PORCENTAGEM DE VENTOS
0 - 3 nós 3 - 13 nós 13 - 25 nós 25 - 40 nós
N 2,0 0,3 0,1
NNE 4,2 2,6 0,2
NE 4,8 2,3 0,2
ENE 7,5 4,8 0,3
ENE 4,5 1,3 0,1
ESSE 3,8 0,8 0,1
SE 1,7 0,3 -
SSE 1,5 0,4 -
S 2,2 1,1 -
SSW 6,9 3,2 0,1
SW 7,0 7,6 0,3
WSW 4,7 2,3 0,1
W 2,2 0,9 0,2
WNW 2,0 0,1 -
NW 3,5 0,4 -
NNW 3,8 0,4 -
TOTAIS 7,2 62,3 28,8 1,7
Aula 05 - Aeroportos
Apostila de Aeroportos
60
FIGURA 5.05 – Decomposição Vetorial dos Ventos no Anemograma.
FIGURA 5.06 – Anemograma com Escolha de Direção de Pista.
Aula 05 - Aeroportos
Apostila de Aeroportos
61
Dados: Local B (Tabela 3)
Componente transversal admissível: 13 nós
Resultado: Direção escolhida 35° - 215°, N.V.
Coeficiente de utilização: ≃ 97,6%
1.3. Quantidade de Pistas de Pouso e Decolagem
O número de pistas é função de:
• Demanda de tráfego previsto;
• Disponibilidade física do sítio aeroportuário;
• Orientação das Pistas.
1.4. Capacidades Horárias Estimadas
Configuração de Pistas Afastamento (m)
Capacidade Horária
VFR IFR
Pista única – 50 – 100 50 – 60
Duas Paralelas
Próximas < 760 85 – 200 55 – 60
Intermediárias 760 – 1309 100 – 200 60 – 75
Distantes > 1310 100 – 200 100 – 120
Duas Interceptantes (*)
Interseção próxima < 610 70 – 110 55 – 65
Interseção mediana 610 – 1525 55 – 105 50 – 60
Interseção distante > 1525 50 – 100 50 –60
Em “V” aberto
Convergente – 65 – 160 50 – 60
Divergente – 70 – 170 55 – 70
(*) Distâncias a partir da cabeceira de pouso ou de decolagem
1.5.Configuração de Pistas – Comparação
• Configurações com apenas uma orientação (pistas paralelas) são as melhores em
termos de capacidade e eficiência de controle de tráfego.
• Se a incidência de vento de través indica a necessidade de orientar as pistas em
mais de uma direção, uma configuração em “V” aberto é mais conveniente que uma
Aula 05 - Aeroportos
Apostila de Aeroportos
62
configuração com pistas interceptantes. E, nesse caso, devem ser adotadas
operações divergentes, sempre que possível.
• Quando há uma direção predominante para a operação das aeronaves e não se
pode evitar o uso de uma configuração com pistas interceptantes, a interseção deve
estar o mais próximo possível das cabeceiras, observando-se aquela direção
predominante das operações.
1.6. Pistas de Táxi
1.6.1. Objetivos do Planejamento
• Permitir o acesso entre pistas de pouso, área terminal e áreas de serviço;
• Evitar conflitos entre aeronaves operantes distinguindo:
o Trajetórias de táxiamento para partidas e para chegadas;
o Áreas de manutenção e de operações de carga
• Evitar que pistas de táxi cruzem pistas de pouso;
• Minimizar o tempo de ocupação de pista de pouso nas operações de chegada.
1.6.2. Pista de Táxi-Saída
• Configuração (tipo)
o Em ângulo reto (90º)
o Em ângulo (40º – 45º)
o De alta velocidade (ou de saída rápida = 30°)
• Localização
o Velocidades de aproximação e de toque
o Velocidade de saída
o Taxa de desaceleração da aeronave
o Composição da frota (mix de aeronaves)
o Técnicas de pilotagem
• Velocidades típicas de toque: 95 – 140 nós2
; (176 – 259 km/h)
• Distâncias típicas de toque: 300 – 450 m;
2
1 Nó = 1,852 km/h.
Aula 05 - Aeroportos
Apostila de Aeroportos
63
• Velocidade de saída: 25 Km/h (saídas a 90°)
95 Km/h (saídas de 30 a 40°)
• Taxa de desaceleração: 1,25 m / s² ICAO
1,50 m / s² FAA
• Correções para a localização da saída
‫ܦ‬ ൌ
ܸ௧
ଶ
െ ܸ௦
ଶ
2. ܽ
D = Distância de aceleração da aeronave no solo;
Vt = Velocidade de toque da aeronave (m/s);
Vs = Velocidade de saída da aeronave (m/s);
30º 26m/s
90º 0m/s
a = Desaceleração da aeronave no solo (m/s²) (valor médio FAA = 1,52 /s²);
Distância de toque ≈ 450 m (aeronaves comerciais)
≈ 300 m (outras)
Ds = D+450 ou Ds = D+300
Velocidade de toque
B-707,DC-10, L-III, B747, etc = 72m/s x 3,6 = 259 km/h
B-737, B727, etc = 67m/s x 3,6 = 241 km/h
Bimotores leves = 49m/s x 3,6 = 176 km/h
Monomotores = 31m/s x 3,6 = 112 km/h
D Distância de toque
PISTA TOQUE
SAÌDA DE PISTA
Aula 05 - Aeroportos
Apostila de Aeroportos
64
a) Elevação do Aeroporto:
+ 3% para cada 300 metros de altitude acima do nível do mar
b) Temperatura de Referência do Aeroporto:
+ 1,58% para cada 5,5°C acima da temperatura padrão do aeroporto.
Nota: geralmente, considera-se um acréscimo de 100 a 150 m na distância calculada
em razão da possibilidade da influência de fatores como habilidade do piloto, pavimento
molhado ou condições precárias de pneus.
1.7. Baias de Espera
• Localizam-se junto ou próximo às cabeceiras da pista para aeronaves no aguardo
de autorização para decolagem e/ou para “checks” finais antes do vôo;
• Devem ser suficientemente grandes para permitir manobras de ultrapassagem e
para acomodar 3 ou 4 aeronaves do tamanho mais crítico.
1.8. Evolução do Sistema de Pistas de Táxi
• Áreas de giro
• Táxi Paralelo Parcial
• Táxi Paralelo Total
• Táxi paralelo Duplo
1.9. Localização da Área Terminal / Pátio de Aeronaves
1.9.1. Objetivos de Planejamento
• Minimizar as distâncias de táxiamento do pátio para as pistas de pouso e vice-
versa;
• Evitar localizações sob as trajetórias de aproximação e decolagem de aeronaves.
1.9.2. Fatores que influenciam a localização da Área Terminal
• Distâncias de táxiamento
• Acesso viário ao aeroporto
• Potencial de expansão
• Proximidade com outras instalações
o De carga
o De manutenção de aeronaves
o De apoio
Aula 05 - Aeroportos
Apostila de Aeroportos
65
• Topografia
o Zonas de proteção desimpedidas
o Adequabilidade para construção (custos)
1.9.3. Localização de Instalações da Área Terminal
• Pista única
Devem estar equidistantes das cabeceiras. Podem estar mais próximas de uma
das cabeceiras quando há uma direção predominante de operação das aeronaves.
• Duas Pistas Paralelas
Localizar as instalações preferencialmente entre as pistas. Podem situar-se,
entretanto, mais próximas das cabeceiras de acordo com a direção predominante de
operação. As pistas podem ser defasadas sendo que isto é vantajoso apenas em
condições de tráfego pouco intenso.
Quando, por alguma razão, o Terminal tende ser situado em um dos lados
externos às pistas podem surgir problemas de cruzamento de pistas de pouso e
grandes distâncias de táxiamento a vencer.
• Pistas em diferentes direções
Localizar as instalações equidistantes entre as pistas, de modo a minimizar as
distâncias de táxiamento.
FIGURA 5.07
Apostila de Aeroportos
Aula 05 - Aeroportos
66
2. Outras Instalações
2.1.Infraestrutura de A
Terminal de cargas (TECA)
• Edificações e pátios para recebimento, tratamento, armazenamento e transferência
de cargas.
• Necessitam de instalações para depósito em bagagens (paletização /
containerização), circul
No Brasil:
• A carga doméstica é tratada pelas companhias aéreas.
• A carga internacional (principalmente importação) é manipulada pela INFRAERO.
A localização do TECA deve:
Apostila de Aeroportos
de Apoio
Terminal de cargas (TECA):
Edificações e pátios para recebimento, tratamento, armazenamento e transferência
Necessitam de instalações para depósito em bagagens (paletização /
containerização), circulação, escritórios e atendimento público.
A carga doméstica é tratada pelas companhias aéreas.
A carga internacional (principalmente importação) é manipulada pela INFRAERO.
A localização do TECA deve:
Aula 05 - Aeroportos
67
Edificações e pátios para recebimento, tratamento, armazenamento e transferência
Necessitam de instalações para depósito em bagagens (paletização /
A carga internacional (principalmente importação) é manipulada pela INFRAERO.
• Viabilizar o mais fácil possível os
permitir o acesso da aeronave, ou das cargas provenientes das aeronaves e dos
transportes terrestres (caminhões e outros) o mais eficientemente possível.
Segundo o IAC (manual de Capacidade da CECIA) para dime
planejamento usa-se:
Onde: A: área do TECA em m².
T: tonelagem anual prevista (em ton.)
F: fator de flutuação da demanda de carga (1,1 a 1,5). Maior quanto menor for
o T.
t: relação do tempo de operação por média do período de
média de 5 dias, t=73)
d: densidade média da carga (varia de 0,0875 a 0,158 ton/m³)
h: altura máxima de empilhamento (depende do equipamento disponível. De 1,
a 4,0m).
f: fator que depende da configuração das áreas de armazenag
a 0,7).
Ou da mesma forma:
Onde:
F: pode variar de 1,3 a 2,5
tm: tempo médio de permanência no terminal.
Hangares:
Destinados a:
Permanência
Proteção
Manutenção
Reparo das Aeronaves
Apostila de Aeroportos
Viabilizar o mais fácil possível os tratamentos de cargas e usuários. Isto é, deve
permitir o acesso da aeronave, ou das cargas provenientes das aeronaves e dos
transportes terrestres (caminhões e outros) o mais eficientemente possível.
Segundo o IAC (manual de Capacidade da CECIA) para dimensionar ao nível de
A: área do TECA em m².
T: tonelagem anual prevista (em ton.)
F: fator de flutuação da demanda de carga (1,1 a 1,5). Maior quanto menor for
t: relação do tempo de operação por média do período de
média de 5 dias, t=73)(365/5 = 73).
d: densidade média da carga (varia de 0,0875 a 0,158 ton/m³)
h: altura máxima de empilhamento (depende do equipamento disponível. De 1,
f: fator que depende da configuração das áreas de armazenag
F: pode variar de 1,3 a 2,5
: tempo médio de permanência no terminal.
Reparo das Aeronaves
Aula 05 - Aeroportos
68
tratamentos de cargas e usuários. Isto é, deve
permitir o acesso da aeronave, ou das cargas provenientes das aeronaves e dos
transportes terrestres (caminhões e outros) o mais eficientemente possível.
nsionar ao nível de
F: fator de flutuação da demanda de carga (1,1 a 1,5). Maior quanto menor for
t: relação do tempo de operação por média do período de armazenagem (p/
d: densidade média da carga (varia de 0,0875 a 0,158 ton/m³)
h: altura máxima de empilhamento (depende do equipamento disponível. De 1,
f: fator que depende da configuração das áreas de armazenagem (varia de 0,4
Aula 05 - Aeroportos
Apostila de Aeroportos
69
Englobam:
Pátios e edificações para aeronaves
Oficinas
Almoxarifados
Escritórios, etc.
Parque de Combustível:
• Potencialmente uma área perigosa, mas essencial;
• Tipos de combustível armazenado;
• AVTUR – querosene de aviação (aviões a turbina)
• AVGAS – gasolina de aviação (aviões a pistão)
• O abastecimento é feito por carros-tanques ou hidrantes.
Porte da área depende:
• Tempo de reserva (de 3 a 30 dias, conforme dificuldade de acesso do combustível à
região);
• Tipo de armazenamento (enterrado e semi-enterrado para pequenos volumes e de
superfície, na vertical ou horizontal para grandes volumes).
Normalmente:
< 100.000 litros tanques subterrâneos ou horizontais de superfície.
> 100.000 litros tanques verticais de superfície.
Roteiro para dimensionamento
• Cálculo do consumo diário em função da frota operante;
• Estabelecimento do tempo de reserva: 5 a 10 dias;
• Obtenção do volume de tancagem;
• Definição do tipo de tanque;
• Formação de baias de contenção;
• Previsão de separações de segurança.
Serviços contra Incêndio:
Apresenta duas esferas de atuação:
Aula 05 - Aeroportos
Apostila de Aeroportos
70
• Voltada para as edificações disposição de hidrantes, sprinklers (chuveiros
automáticos), extintores tipo água, espuma, CO2, pó químico seco, para incêndios
que deixam resíduos, inflamáveis, elétricos e pirofóricos respectivamente.
• Voltada ao atendimento do lado aéreo depende da classe das aeronaves e da
frequência de operação. Para cada uma existem exigências mínimas de agentes
extintores e carros de combate.
Para o 1º caso:
Instalações localizadas de maneira a atender o sinistro no menor tempo possível.
Para o 2º caso:
Previstas aéreas para permanência do pessoal em estado de alerta, incluindo
alojamentos, salas de estar, setores para treinamento, fácil acesso e circulação.
Do ponto mais distante ao avião em chamas no máximo em “3 minutos”.
Categoria do Aeroporto
Comprimento da Aeronave Número de
de (m) até (m) AR AP
1 0,00 8,99 1 0
2 9,00 11,99 1 0
3 12,00 17,99 1 0
4 18,00 23,99 1 1
5 24,00 27,99 1 1
6 28,00 38,99 1 2
7 39,00 48,99 1 2
8 49,00 60,99 1 2
9 61,00 76 1 2 ou 3
AR: carro de ataque rápido
AP: carro de ataque pesado
Comissária:
• Preparação do serviço de bordo (feito dentro ou fora do aeroporto)
• Embalagem adequada dos alimentos
Torre de Controle:
Critérios para instalação:
• Proporcionar ao controlador do aeródromo ampla e total visibilidade do circuito de
tráfego sob jurisdição, das pistas em operação e de todas as áreas utilizadas pelas
aeronaves em movimento na superfície do aeródromo sob controle da torre;
• Dispor de área suficiente para acomodar as edificações iniciais e permitir futuras
expansões;
Aula 05 - Aeroportos
Apostila de Aeroportos
71
• Evitar qualquer interferência da altura da torre nos gabaritos de zona de proteção
do aeródromo, assim como devem ser avaliadas suas influências sobre o
desempenho dos auxílios rádio à navegação e à aproximação;
• Ter avaliado a profundidade de percepção das superfícies sob controle da torre,
evitando a incidência solar sobre o controlador (no hemisfério sul a face operacional
deve ser orientada preferencialmente para o sul) e o prejuízo provocado por fontes
externas;
• Ter minimizado o efeito do ruído no desempenho operacional (alguns casos exigem
insonorização);
• Evitar que o sítio da torre cruze áreas operacionais;
• Ter estudado o plano diretor para evitar que futuras instalações passem a ser
obstáculos.
Sala de Tráfego:
• Onde são prestados serviços de apoio ao vôo;
• Serve de elo entre os pilotos e os órgãos de proteção ao vôo;
• Os pilotos verificam as condições de operação e de meteorologia em rota,
submetem planos de vôo antes da decolagem.
Infraestrutura Básica:
• Água
• Esgoto
• Telecomunicações
• Energia
• Lixo
• Gás
Acesso / Circulação:
(aula específica sobre o assunto)
REFERÊNCIAS:
Sória, M. H. A. (1983) Orientação de pista, USP-São Carlos, apostila
Goldner, N.(1993), Aeroportos, UFRJ, apostila
Aula 06 - Aeroportos
Apostila de Aeroportos
72
AULA 06
1. Escolha De Sítio Aeroportuário
1.1. Objetivo
• Sítio tamanho adequado e localização apropriada para servir os usuários;
• Avaliar alternativas sob critérios econômicos, geográficos, de engenharia e
ambientais.
1.2.Etapas do Processo de Escolha
1. Estabelecer aproximadamente tipo e dimensões do aeroporto;
2. Estudo de escritório: prováveis alternativas;
3. Estudo de campo: alternativas escolhidas;
4. Avaliação final e seleção;
5. Relatório e recomendações.
1.3.Fatores que Influenciam Dimensões do Aeroporto
• Volume de passageiros e aeronaves
o Número de pistas de pouso/decolagem
o Pistas de táxi
o Pátio de aeronaves
o Terminal de passageiros e cargas
o Acesso viário, vias de circulação e estacionamento
o Área de apoio (hangares, comissária etc.)
• Altitude do local
• Condições meteorológicas (vento e temperatura)
• Tráfego aéreo (rotas aéreas de aeroportos próximos)
• Área de reserva (amortecer incômodo do ruído aeronáutico sob a
comunidade)
1.4.Estudo de Escritório de Possíveis Alternativas
1.4.1. Critérios Básicos de Localização
• Área (dimensões ideais para a implantação do aeroporto);
Aula 06 - Aeroportos
Apostila de Aeroportos
73
• Área recomendada (incluir curva 1 de ruído);
• Relacionamento urbano (fora da área urbana e contrária aos vetores de expansão);
• Distância ao centro urbano (10 a 30 km);
• Acesso viário (próximo à rodovias);
• Infraestrutura (energia elétrica, esgotos, água e telecomunicações);
• Topografia (livre de obstáculos, área plana);
• Geologia (solo de bom suporte);
• Meteorologia (vento, temperatura e chuva);
• Viabilidade econômica (custos monetários, sociais e ambientais).
1.5.Metodologia de Escolha de Sítio Aeroportuário
Tese de mestrado / COPPE/UFRJ – 1985
Edmilton Menezes da silva – IAC
REQUISITOS
ALTERNATIVAS
1 2 3 4 5 6 7
ÁREA 0 0 0 1 1 1 1
USO DO SOLO 1 0 0 1 1 1 1
ACESSO 1 0 1 0 1 1 1
INFRA-ESTRUTURA 1 1 1 0 1 1 1
TOPOGRAFIA 0 0 0 1 1 1 0
GEOLOGIA 1 1 1 1 1 1 1
DISTÂNCIA 1 1 1 0 0 0 1
METEOROLOGIA 0 1 1 0 1 1 1
CUSTOS 0 0 0 0 1 0 1
TOTAL - PONTOS 5 4 5 4 8 7 8
ESTUDO DOS FATORES DETERMINÍSTICOS
GRUPO 1 – RELACIONAMENTO URBANO
4 – entre 15 a 20 km
- Distância ao 3 – entre 10 a 15 km
Centro Urbano 2 – entre 20 a 25 km
(0,2) 1 – a menos de 10 km
Aula 06 - Aeroportos
Apostila de Aeroportos
74
4 – pavimentada e adjacente ao sítio
- Vias de Acesso 3 – pavimentada até 5 km do sítio
(0,3) 2 – em implantação (até 5 km)
1 – planejada
4 – área I e II dentro dos limites patrimoniais
- Uso do solo no 3 – área I dentro dos limites patrimoniais
Entorno – Ruído 2 – área II fora dos limites patrimoniais e uso do solo compatível
(0,4) 1 – idem e uso do solo incompatível
4 – todos os serviços (E. Elétrica, Água, Telecomunicações, etc)
- Infraestrutura 3 – Apenas E. Elétrica e Água
de Serviços 2 – Apenas E. Elétrica
(0,1) 1 – Dificuldades de implantação de Serviços
4 – Ótimo
3 – Bom
2 – Regular
1 – Ruim
GRUPO 2 – FATORES OPERACIONAIS
4 – nenhum obstáculo
- Obstáculos Físicos 3 – apenas na área horizontal
(0,4) 2 – área de transição
1 – área de aproximação
Aula 06 - Aeroportos
Apostila de Aeroportos
75
4 – 95% de comprimento de pista na direção dos ventos
predominantes
- Direção dos 3 – entre 75% e 95%
ventos 2 – entre 60% e 75%
(0,4) 1 – entre 50% e 60%
- Proximidade de 4 – não há aeroportos num raio de 50 km
Outros Aeroportos 3 – entre 20 e 50 km
(0,2) 2 – entre 10 e 20 km
1 – a menos de 10 km
GRUPO 3 – FATORES FÍSICOS E GEOGRÁFICOS
4 – área plana sem problema de drenagem
- Movimentação 3 – baixos custos no movimento de terra
de Terra 2 – custo médio no movimento de terra
(0,4) 1 – altos custos no movimento de terra
4 – adequada e com possibilidade de expansão em todas as
- Dimensões de área direções
e Possibilidade 3 – expansão apenas nas cabeceiras
de Expansão 2 – apenas uma das cabeceiras
(0,3) 1 – sem possibilidades de expansão
Aula 06 - Aeroportos
Apostila de Aeroportos
76
4 – propriedades do poder público
- Valor da Terra 3 – baixo custo de desapropriação
(0,3) 2 – custo médio de desapropriação
1 – alto custo de desapropriação
a) PROCEDIMENTOS
(1) - Eleição dos Grupos de Fatores Determinísticos e seus respectivos atributos
(2) - Elaboração de Arranjos Matriciais
(3) - Estabelecimento dos pesos relativos dos atributos dentro do seu grupo
b) ESTABELECIMENTO DE CRITÉRIOS NA ATRIBUIÇÃO DE PESOS AO TRIBUTOS (A
PARTIR DAS CONDIÇÕES REAIS)
CONCEITO PESO
EXCELENTE 4
BOM 3
SATISFATÓRIO 2
RUIM 1
c) ELEIÇÃO DOS ATRIBUTOS
GRUPO I – FATORES DE RELACIONAMENTO URBANO
SÍTIOS
01 02 ... n
ATRIBUTOS PESO REL.
DISTÂNCIA AO CENTRO URBANO 0.2
VIAS DE ACESSO 0.3
USO DO SOLO NO ENTORNO – RUÍDO 0.4
INFRA-ESTRUTURA DE SERVIÇOS 0.1
TOTAL 1.0
Aula 06 - Aeroportos
Apostila de Aeroportos
77
GRUPO II – FATORES OPERACIONAIS
SÍTIOS
01 02 ... n
ATRIBUTOS
PESO
REL.
OBSTÁCULOS FÍSICOS 0.4
DIREÇÃO DOS VENTOS 0.4
PROXIMIDADE AEROPORTOS 0.2
TOTAL 1.0
GRUPO II – FATORES FÍSICOS/GEOGRÁFICOS
SÍTIOS
01 02 ... n
ATRIBUTOS PESO REL.
TERRAPLENAGEM 0.4
DIMENSÕES DA ÁREA 0.3
VALOR DA TERRA 0.3
TOTAL 1.0
REFERÊNCIAS:
Silva, E. M. (1985), Escolha de sítio aeroportuário, Dissertação de Mestrado, COPPE/UFRJ
Aula 07 - Aeroportos
Apostila de Aeroportos
78
AULA 07
1. Plano Diretor Aeroportuário
1.1.Características Gerais
Conjunto de documentos que apresentam a orientação para a implantação e
desenvolvimento do aeroporto.
É fundamental para a construção ou ampliação do aeroporto, garantindo a
harmonização pelas diversas fases de crescimento, sem desperdícios e em
compatibilidade com: o meio ambiente, o progresso da comunidade e os outros fatores
intervenientes.
1.1.1. Sequencia de Fases
• Fase 1 – Informações Básicas: consiste no levantamento dos dados necessários
e suficientes para a realização dos estudos preliminares do aeroporto.
• Fase 2 – Estudos Preliminares: consiste na avaliação dos dados coletados para
determinação dos requisitos do aeroporto.
• Fase 3 – Escolha do Local: consiste na opção, após comparação dos vários locais
indicados nas fases anteriores, no caso da implantação de um novo aeroporto.
• Fase 4 – Planejamento Geral: Consiste no estabelecimento da configuração do
aeroporto, com indicação de seus elementos mais importantes, proposição para uso
da terra e zona de proteção do aeroporto, planejamento da área terminal e das vias
de acesso e plano de viabilidade econômica e financeira.
Cada fase deve ser examinada e analisada, considerando-se a viabilidade técnica e
econômica. Os profissionais incumbidos do estudo das quatro fases podem quando
julgarem necessário, apresentar informações ou sugestões complementares.
1.2. Informações Básicas
• Nome da região, localização geográfica representada em mapas e plantas com
indicação do Norte Verdadeiro e Norte Magnético;
• Dados históricos que permitam visualizar o desenvolvimento, a necessidade de
existência do aeroporto e a possibilidade de sua ampliação futura;
• Plantas topográficas do terreno e áreas adjacentes;
• Natureza do solo, tipos de vegetação e sondagens existentes;
Aula 07 - Aeroportos
Apostila de Aeroportos
79
• No caso de ampliação ou melhoramento do aeroporto, levantamento e análise das
atuais instalações, indicando as deficiências observadas;
• Legislação relativa ao uso do solo e à execução de obras na região;
• Estudos de planejamento existentes para a região;
• Características gerais e situação das rodovias, ferrovias e portos existentes ou
planejados, na região ou em suas vizinhanças;
• Jazidas e indústrias de materiais de construção;
• Dados de caráter ambiental, como ecologia da área e possível impacto do ruído dos
aviões na comunidade;
• Dados sócio-econômicos relativos à população, aos meios de transporte e outros
que possam interessar no estudo da demanda do aeroporto;
• Dados meteorológicos relativos à temperatura, vento, chuvas e ocorrência de
nevoeiros;
1.3.Estudos Preliminares
Constam da análise e avaliação das informações básicas coletadas.
Visa determinar os requisitos essenciais ao empreendimento a ser desenvolvido.
1.3.1. Estudo da demanda do Transporte Aéreo
Deve ser desenvolvido com base na análise dos elementos coletados, estabelecendo as
projeções de demanda no horizonte de tempo pré-definido nas diretrizes.
1.3.2. Estudo da Capacidade da Infraestrutura Aeroportuária
• Área de movimento para aeronaves considerando-se o número máximo de
operações que o conjunto de pistas deve acomodar;
• Área terminal com a estimativa da capacidade individual de cada um dos
elementos, ou seja, estacionamentos das aeronaves, pátios, terminal de
passageiros, terminal de carga etc.;
• Espaço aéreo com a estimativa de capacidade em função da natureza das
operações (IFR e VFR), proximidade de outros aeroportos e da presença de
obstáculos.
• Vias de acesso de superfície com a estimativa da capacidade em termos de
veículos por unidade de tempo, decorrente do transportes de cargas e de pessoas,
considerando-se os passageiros, acompanhantes, visitantes e funcionários.
Aula 07 - Aeroportos
Apostila de Aeroportos
80
1.4. Escolha do Local
1.4.1. Estudo de Gabinete
Fornecem elementos que, provavelmente, permite reduzir o n° de locais
selecionados preliminarmente, o que diminui os elevados custos com as pesquisas de
campo, seguindo as seguintes orientações:
• Localização de outros aeroportos existentes ou planejados;
• Levantamento de planos do uso da terra, programas e projetos;
• Levantamento dos custos dos terrenos e cadastro de seus proprietários;
• Estudo das características topográficas;
• Estudo do custo provável da elaboração do anteprojeto em cada local;
• Distribuição e atividades da população relativamente aos locais selecionados.
1.4.2. Pesquisas de Campo
• Realização de sondagens geotécnicas;
• Retirada de amostras do solo;
• Fotografias aéreas e terrestres da área.
1.4.3. Avaliação Final e Seleção
• Selecionar o melhor local;
• Detalhamento do local, posteriormente.
1.5.Planejamento Geral do Aeroporto
Conjunto de planos e plantas sistematicamente ordenados, objetivando encontrar
a melhor solução para o desenvolvimento do aeroporto, composto pelos seguintes
documentos:
• Plano do Aeroporto (mapas de localização e situação, e plantas de zoneamento
e configuração);
• Plano do uso da terra;
• Plano de Zona de Proteção;
• Plano da Área Terminal;
• Plano das Vias de Acesso;
• Plano de Viabilidade Econômico-Financeira.
Aula 07 - Aeroportos
Apostila de Aeroportos
81
1.6.Impactos
1.6.1. Sociais
• Demografia taxa de crescimento da população, grau de urbanização, tamanho
da família na sociedade,...;
• Economia nível de empregos, imposto territorial, participação da força de
trabalho,...;
• Estrutura Social nível escolar, disponibilidade de casas,...etc;
• Serviços Públicos educação pública, assistência médica, transportes,..;
• Bem-Estar Social taxa de criminalidade, sanidade mental, ...etc.
1.6.2. Econômicos
• Benefícios Quantificáveis magnitude, tempo e lugar de ocorrência.
1.6.3. Ambientais
• Sistema Ecológico fauna, flora;
• Terra uso da terra, lixo, erosão, geologia;
• Água fornecimento, hidrologia, propriedades;
• Ar qualidade;
• Ruído poluição sonora;
• Outros preservação de locais, interesse paisagístico.
Aula 07 - Aeroportos
Apostila de Aeroportos
82
DIAGRAMADECONVERSÃODEDEMANDAANUALPARAPLANEJAMENTODEAEROPORTOS
Fonte:CursoEngenhariadeAeroportos–SingaporeAviationAcademy(1993)
Aula 07 - Aeroportos
Apostila de Aeroportos
83
SISTEMA
AERONÁUTICO
GRUPO DE
PLANEJAMENTO
INDÚSTRIA
AERONÁUTICA
GRUPO DE
PILOTOS
AUTORIDADES
ESTADUAIS
E
MUNICIPAIS
GRUPOS DE
HABITANTES
LOCAIS
AUTORIDADES
AEROPORTUÁRIAS
AVIAÇÃO GERAL
MILITAR
GOVERNO FEDERAL
TRANSPORTADORAS
AÉREAS
GRUPO DE REPRESENTANTES PARTICIPANTES NO PROCESSO DE
PLANEJAMENTO
Aula 07 - Aeroportos
Apostila de Aeroportos
84
1
Inventário do
Sistema
2
Previsão das
Futuras
Atividades
15
Tomador de
Decisão
14
Cenários do
Futuro Sistema
3
Análise
Capacidade/Demanda
4
Futuras
Instalações
Necessárias
5
Gerar Alternativas
6
Análise
Capacidade/Demanda
7
Avaliação das Alternativas
8
Viabilidade Financeira
9
Seleção de Alternativas
10
Preparar o
Plano
11
Implementar o
Plano
12
Monitorar as
Atividades
13
Critérios de
Planejamento
Aula 07 - Aeroportos
Apostila de Aeroportos
85
SISTEMA AEROPORTUÁRIO
ACESSO -
EGRESSO
veículos
ACESSO - VIÁRIO
CIRCULAÇÃO MEIO - FIO ESTACIONAMENTO
TERMINAL DE PASSAGEIROS
Componente Embarque
Componente
Trânsito
Componente
Desembarque
Componente Apoio
PÁTIO
Operações com: Pax Aeronaves Bag
ACESSO - AÉREO
Pistas Espaço Aéreo
aeronaves
DESTINO - ORIGEM
Fonte: Gualda, 1978
Aula 07 - Aeroportos
Apostila de Aeroportos
86
SISTEMA AERONÁUTICO
1.7.O Plano Diretor de acordo com as Normas da Icao
O plano diretor é um guia para:
• O desenvolvimento das facilidades físicas de um aeroporto;
• O desenvolvimento do uso do solo das áreas ao redor do aeroporto;
• Determinação dos efeitos no meio ambiente da construção e operação do
aeródromo;
• Estabelecimentos dos acessos necessários ao aeroporto.
Etapas de Planejamento do Plano Diretor:
• Preparação do plano de trabalho;
• Inventário e condições dos documentos existentes;
• Previsão da demanda futura do tráfego aéreo;
• Determinação das etapas e do tempo de realização para as facilidades;
• Avaliação das restrições existentes e potenciais;
• Determinação da importância relativa das restrições e outras considerações;
• Desenvolvimento de várias opções de planos (alternativas);
• Avaliação e análise de todas as alternativas;
• Seleção da opção (alternativa) mais apropriada e aceitável, refinando e modificando
como parte de um processo de reavaliação;
• Preparação de um documento final sobre o plano.
Aula 07 - Aeroportos
Apostila de Aeroportos
87
Etapas de Planejamentos Descrição
Pré-Planejamento
Coordenação, processo de planejamento,
organização do planejamento, objetivos e
política de metas.
Previsão para o propósito de
planejamento
Necessidades, previsões necessárias, métodos e
princípios de previsão, fatores, apresentação
das previsões.
Plano Financeiro e Controle
Custo do Capital, necessidades de dinheiro,
busca de fundos, financiamento doméstico e
internacional; Custos operacionais; Fontes de
receita.
Avaliação e Seleção do local
Tamanho da área necessária, localização dos
locais potenciais, fatores que afetam a
localização do aeroporto, estudo preliminar dos
possíveis locais, inspeção do local, consideração
dos custos operacionais e sociais, estudo do
meio ambiente, revisão dos locais potenciais,
estimativa de custos e receitas, avaliação final.
Pista de pouso e decolagem e Pistas
de Táxi
Dimensões, resistência, características das
aeronaves, performance, comprimento da pista
(pouso / decolagem), configuração, capacidade.
Pátios
Layout dos pátios, tamanho das posições,
estacionamento, serviços e hangares, área de
espera das aeronaves, segurança, área de
equipamento de pátio.
Navegação Aérea e Terrestre, Auxílios
e Controle de Tráfego.
Auxílios visuais, de rádio navegação e suas
edificações, demarcação de áreas críticas,
serviço de tráfego aéreo, serviço de busca e
salvamento, controle de pátio e comunicações.
Aula 07 - Aeroportos
Apostila de Aeroportos
88
Etapas de Planejamentos Descrição
Terminal de Passageiros
Princípios de planejamento, características dos
serviços e do tráfego do aeroporto, fatores
afetando a escala de serviços a serem
ofertados, demanda e capacidade.
Conexão entre o terminal de passageiros e o
sistema de acesso, processamento de
passageiros e bagagem, áreas de espera,
controle de passaporte, links com a parte aérea,
veículos p/ movimentação de passageiros no
pátio, transferência de passageiros em conexão,
outros serviços para passageiros.
Necessidades para instalação da
Carga
Local, tipo e função da edificação, pátio,
acessos, estacionamento, inspeção e controle.
Transporte terrestre e Circulação
interna de veículos e
estacionamentos.
Modos públicos e privados de transporte, dados
de tráfego, circulação interna, meio fio,
estacionamento de veículos.
Instalações para operação e suporte
do aeroporto
Administração e manutenção, centro médico,
estação de abastecimento de veículos, oferta de
água e sanitários, comissária, cozinhas, serviços
meteorológicos, sala de tráfego (da tripulação),
manutenção de aeronaves, bombeiros e
resgate, instalações de aviação em geral,
abastecimento de aeronaves.
Segurança
Segurança do lado aéreo: isolar as vias e
posição de estacionamentos, segurança da área
de estacionamento, área de espera utilizada
para explosão de emergência;
Segurança do lado terra: terminal de
passageiros, locais públicos de armazenamento
com chave.
Aula 07 - Aeroportos
Apostila de Aeroportos
89
1.7.1. Demanda de Tráfego
De Passageiros:
• Movimento de passageiros anual nos últimos 10 anos;
• Movimento de passageiros mensal nos últimos 5 anos;
• Movimento de passageiros, horário dos 10 dias de pico dos últimos 5 anos.
De Aeronaves:
• Movimento anual dos últimos 10 anos;
• Movimentos mensais dos últimos 5 anos;
• Movimentos horários dos 10 dias de pico dos últimos 5 anos.
1.7.2. Crescimento de Passageiros e de Aeronaves (doméstico e
internacional)
• Mix atual e futuro de aeronaves para os próximos 15 anos;
• Padrão histórico do movimento de aeronaves militares e seu crescimento (se for o
caso);
• Quadro de horário de operação das linhas aéreas;
• Dados sócio-econômicos gerais, dados econômicos básicos e taxas de crescimento
da capacidade e da região do aeroporto, incluindo dados de população, emprego,
renda, turismo, atividades da construção civil, demandas da indústria, etc.
Distribuição da renda na cidade, região e país, com mudanças projetadas no
modelo de distribuição. Custo e níveis de serviço dos modos de transporte e
terrestre.
Dados sobre o Meio Ambiente:
• Legislação do planejamento local;
• Planos de desenvolvimento local, com detalhamento, indicando planos para
desenvolvimento metropolitano e regional;
• Usos do solo existente e papel de desenvolvimento no ambiente do aeroporto;
• Relacionamento entre planos de transporte local e plano de transportes nacional e
estratégias de investimentos nos vários níveis de governo;
• Legislação e Regulamentação sobre ruído, local e nacional, corrente e planejada.
Aula 07 - Aeroportos
Apostila de Aeroportos
90
Dados físicos:
• Descrição e divisão modal dos modos de acesso existentes;
• Dados Meteorológicos: vento, chuva, neve, período de baixa visibilidade.
• Detalhamento topográfico de aproximadamente 30 Km ao redor do aeroporto, com
contornos de 10 Km na escala 1: 50.000;
• Maior detalhamento topográfico de 3 a 5 Km ao redor do aeroporto e um contorno
de aproximadamente 1 Km na escala 1: 2.000;
• Plantas das construções existentes com detalhes de propriedade;
• Detalhes das avarias nas edificações existentes, distribuídas nas diversas funções;
• Plantas de detalhamento arquitetônico de algum terminal existente projetado para
uso de várias utilidades, por exemplo: imigração, visitantes, check-in, devolução de
bagagem, administração, concessão, etc.
• Detalhamento da estrutura das construções dos pátios, pistas de táxi, pistas de
pouso e decolagem e principais construções;
• Avaliação do comprimento e condições da resistência destes elementos;
• Avaliação da estabilidade e indicação do tipo de estrutura (permanente, leve ou
temporária);
• Condições e extensão da drenagem existente;
• Condições e expansão da iluminação das pistas (pouso/decolagem e táxi) e
aproximações;
• Condições e expansão da sinalização;
• Condições, tipo e capacidade dos auxílios à navegação e telecomunicações;
• Dados de obstáculos para as aeronaves penetrando nas superfícies protegidas
(zonas de proteção);
• Detalhes de serviços existentes de combate ao fogo, etc.
• Outros dados físicos incluindo o meio ambiente (flora e fauna).
Dados Gerais:
• Outros planos de transportes e desenvolvimento no ambiente do aeroporto;
• Planos de desenvolvimento comercial, turístico, industrial, governamental;
• Fontes de financiamento em aeroportos em operação.
Aula 07 - Aeroportos
Apostila de Aeroportos
91
Dados Aeronáuticos:
• Fila de espera, aproximações, aproximações perdidas (abortagem de pouso –
arremeter), procedimentos de decolagem e abortagem de decolagem;
• Aerovias.
Dados sobre Construção:
• Detalhamento dos custos do material de construção, por exemplo: concreto, aço,
terra, alvenaria. Custos finais e custos de equipamentos.
1.8.Estrutura do Relatório sobre o Plano Diretor
Demanda:
• Previsão do tráfego de passageiros;
• Previsão do tráfego de carga;
• Previsão do movimento do transporte aéreo (aeronaves);
• Previsão do movimento da aviação em geral e da militar;
• Previsão do tráfego nos acessos terrestres por modos públicos e privados.
Capacidade:
• Para o lado Aéreo: pistas de pouso/decolagem, pistas de táxi, pátios e áreas de
espera.
• Para os Terminais: passageiro e carga.
• Para o lado Terra: modos de acesso e estacionamento.
Estimativa de Custos:
• Pistas de pouso/decolagem, de táxi, pátios e áreas de espera;
• Terminal de carga e passageiro;
• Torre de controle, auxílios à navegação;
• Facilidades de suporte, como meteorologia e combate a incêndio;
• Rodovias, estacionamentos e acessos;
• Área Militar;
• Facilidades para aviação geral;
• Áreas de Manutenção.
Aula 07 - Aeroportos
Apostila de Aeroportos
92
Acrescentar os seguintes desenhos:
• Planta de orientação;
• Planta de localização;
• Planta do local existente;
• Planta do uso do solo próximo;
• Planta do uso do solo regional;
• Planta do uso do solo do aeroporto;
• Planta com o layout do aeroporto;
• Planta com localização dos auxílios de navegação;
• Planta com as zonas de proteção;
• Planta com os acessos;
• Planta da drenagem, movimentação de terra e paisagismo;
• Contornos do ruído.
Aula 08 - Aeroportos
Apostila de Aeroportos
93
AULA 08
1. Plano de Zona de Proteção de Aeródromo
Definição: Documento de aplicação genérica ou específica composto por um conjunto
de superfícies imaginárias, bi ou tridimensionais, que estabelece as restrições impostas
ao aproveitamento das propriedades dentro da Zona de Proteção de um aeródromo.
Tipos:
Básico de Zona de Proteção de Aeródromo;
Básico de Zoneamento de Ruído;
Básico de Zona de Proteção de Heliponto;
Zona de Proteção de Auxílios à Navegação Aérea;
Específico de Zona de Proteção de Aeródromo; e
Específico de Zoneamento de Ruído.
1.1. Legislação Internacional
• Organização de Aviação Civil Internacional (OACI) - Brasil
• Federal Aviation Administration (FAA) - Estados Unidos
• Service Technique des Bases Aeriennes (STBA) – França
1.2.Legislação Brasileira
Portaria Nº 256/GC-5, de 13 de maio de 2011
Comando da Aeronáutica
Regulamento Brasileiro da Aviação Civil – RBAC-154: Projetos, de 11 de maio de 2009 e
RBAC 161 da ANAC, de 29 de setembro de 2011
Agência Nacional de Aviação Civil – ANAC
1.3.Plano Básico de Zona de Proteção de Aeródromo
Documento de aplicação genérica em aeródromos, que estabelece as restrições
impostas ao aproveitamento das propriedades dentro da Zona de proteção de um
aeródromo.
Aula 08 - Aeroportos
Apostila de Aeroportos
94
1.4.Plano Específico de Zona de Proteção de Aeródromo
Documento, elaborado pela DECEA, de aplicação específica que estabelece as
restrições impostas ao aproveitamento das propriedades dentro da Zona de um
determinado aeródromo.
1.5. Plano de Zona de Proteção de Aeródromo
Superfícies:
• Faixa de Pista (RBAC-154: Projetos)
• de Aproximação
• de Decolagem
• de Transição
• Horizontal Interna
• Cônica
• de Aproximação e Transição Interna e Pouso Interrompido
Aula 08 - Aeroportos
Apostila de Aeroportos
95
1.6.Faixa de Pista
• Definição: Plano que envolve a pista de pouso e decolagem e tem, em cada ponto,
a altitude do ponto mais próximo situado no eixo da pista ou no seu
prolongamento.
• Finalidade: Proteger as aeronaves no solo em caso de saírem da pista durante a
corrida realizada após o pouso e para a decolagem.
FIGURA 8.01 - PLANO BÁSICO DE ZONA DE PROTEÇÃO DE AERÓDROMO
FAIXA DE PISTA
PARÂMETROS
CLASSE DO AERÓDROMO
VFR
IFR - NÃO
PRECISÃO IFR - PRECISÃO
CÓDIGO DE PISTA CÓDIGO DE PISTA CÓDIGO DE PISTA
1 2 3 e 4 1 e 2 3 e 4 1 e 2 3 e 4
A (m) 60 80 150 150 300 150 300
B (m) 30 60 60 60 60 60 60
NOTA: para efeito do traçado da faixa de pista, ao comprimento da pista de pouso são
acrescidas as zona de parada, caso exitam.
1.7. Superfície de Aproximação
• Definição: superfície que se estende em rampa, no sentido do prolongamento da
cabeceira da pista de pouso e decolagem, a partir da faixa de pista.
• Finalidade: definir a porção do espaço aéreo que se deve manter livre de obstáculos
a fim de proteger as aeronaves durante a fase final de aproximação para pouso.
A/2
ZONADEPARADA
PISTADEPOUSO
A
BB
Aula 08 - Aeroportos
Apostila de Aeroportos
96
FIGURA 8.02 - Superfície de Aproximação
SUPERFÍCIES
DIMENSÕES
(a)
CLASSE DO AERÓDROMO
VFR
IFR - NÃO
PRECISÃO
IFR -
PRECISÃO
CÓDIGO DE PISTA
CÓDIGO DE
PISTA
CÓDIGO DE
PISTA
1 2 3 4 1 e 2 3 e 4 1 e 2 3 e 4
α
6° 6° 6° 6° 9° 9° 9° 9°
10% 10% 10% 10% 15% 15% 15% 15%
R1
20 25 30 40 30 50 50 50
5% 4% 3,33% 2,5% 3,33% 2% 2,5% 2%
R2
― ― ― ― ― 40 33,3 40
― ― ― ― ― 2,5% 3% 2,5%
C m 30 60 60 60 60 60 60 60
D1 m 1600 2500 3000 3000 2500 3000 3000 3000
D2 m ― ― ― ― ― 3600 12000 3600
D3 m ― ― ― ― ― 8400 ― 8400
Obs.: IFR-PRECISÃO CAT II e CAT III somente pistas 3 e 4.
(a) todas as dimensões são medidas horizontalmente.
(b) comprimento variável (ver parágrafo 2º do Art. 20).
(c) as dimensões as superfície poderão ser diferentes em função do desvio lateral ou curva.
1.8. Superfície de Decolagem
• Definição: superfície que se estende em rampa, no sentido do prolongamento da
cabeceira da pista de pouso e decolagem, a partir da Faixa de Pista ou da Zona
Livre de Obstáculos (Clearway), caso exista.
D3 D2 D1 C D1 D2 D3C
1/R2
1/R1 1/R1
1/R2
PERFIL
SEÇÃO DE HORIZONTAL 2ª SEÇÃO
1ª SEÇÃO
SEÇÃO DE HORIZONTAL2ª SEÇÃO
1ª SEÇÃO
a
a
a
a
PISTA
ZONA DE PARADA
Aula 08 - Aeroportos
Apostila de Aeroportos
97
• Finalidade: proporcionar proteção às aeronaves durante a decolagem, indicando a
altitude máxima permitida para os obstáculos situados em sua área de
abrangência.
FIGURA 8.03 – Superfície de Decolagem
SUPERFÍCIES
DIMENSÕES
(a)
DECOLAGEM
(e)
CLASSES
VFR IFR - NÃO PRECISÃO
IFR - PRECISÃO
CÓDIGO DE PISTA
1 2 3 e 4
c m (b) 30 60 60
L1 m 60 80 180
L2 m 380 580 1800 (c)
α
6° 6° 7,12°
10% 10% 12,5%
D m 1600 2500 15000
R
20 25 50
5% 4% 2% (d)
H m 80 100 300
(a) todas as dimensões são medidas horizontalmente.
(b) a superfície de decolagem começa no final da clearway se o compri-
mento da clearway exceder a distâncias especificada.
(c) 1800m quando a trajetória incluir mudança de proa maior que 15º em
operações IMC, VMC à noite.
(d) ver parágrafo 6º do Art. 12.
(e) as dimensões da superfície poderão ser diferentes em função do desvio
lateral ou curva.
ÁREA DE DECOLAGEM ÁREA DE DECOLAGEM
C
D
D
D
H
1/R
1/R
PERFIL
FAIXA DE PISTA
ZONA LIVRE DE OBSTÁCULOS
L/2L1
αααα
αααα
Aula 08 - Aeroportos
Apostila de Aeroportos
98
1.9.Superfície de Aproximação e Transição Interna e Pouso Interrompido
• Definição: superfície que se estende em rampa antes da pista na aproximação interna,
e a partir dos limites laterais da faixa de pista e da interseção com a área de
transição interna, e a partir da distância D2 de início da rampa de pouso interrompido, até o
ponto onde sua altitude atinge o desnível de 45m em relação à elevação do
aeródromo.
• Finalidade: estabelecer um espaço aéreo adicional inviolável que deve ser mantido
livre de obstáculos, a fim de proteger a fase final de aproximação e pouso e no caso
de arremetidas de pousos interrompidos.
SUPERFÍCIES
DIMENSÕES
(a)
CLASSES
IFR – PRECISÃO CATI
IFR – PRECISÃO
CAT II e III
CÓDIGO DE PISTA
CÓDIGO DE
PISTA
1 e 2 3 e 4 3 e 4
APROXIMAÇÃO INTERNA
L m 90 120(e) 120(e)
C m 60 60 60
D1 m 900 900 900
R1
40 50 50
2,5% 2% 2%
TRANSIÇÃO INTERNA
R2
2,5 3 3
40% 33,3% 33,3%
POUSO INTERROMPIDO
L2 m 90 120(e) 120(e)
D2 m (c) 1800(d) 1800(d)
a
6º 6º 6º
10% 10% 10%
R3 25 30 30
4% 3,33% 3,33%
(a) todas as dimensões são medidas horizontalmente.
(c) distância até o final da pista.
(d) ou o final da pista, o que for menor.
(e) onde a letra do código de referência do aeródromo for “F”, a lagura é
aumentada para 155m.
Aula 08 - Aeroportos
Apostila de Aeroportos
99
Aula 08 - Aeroportos
Apostila de Aeroportos
100
1.10. Superfície de Transição
• Definição: superfície que se estende em rampa, a partir dos limites laterais da
Faixa de Pista e da interseção com a área de aproximação, onde houver, até o
ponto onde sua altitude atinge o desnível de 45m em relação à elevação do
aeródromo.
• Finalidade: estabelecer um espaço aéreo adicional que deve ser mantido livre de
obstáculos, a fim de proteger a fase final de aproximação e pouso, em caso de
desvio do eixo da pista e/ou arremetidas.
FIGURA 8.04 - Superfície de Transição
ÁREADE
APROXIMAÇÃO
ÁREADE
APROXIMAÇÃO
FAIXADEPISTA
1/R
1/R
1/R
1/R
a
a
a
a
A
A
CLASSEIFR-NÃO-PRECISÃOE
IFR-PRECISÃOCÓDIGOS3E4
1/R
1/R
1/R
1/R
ÁREADE
APROXIMAÇÃO
ÁREADE
APROXIMAÇÃO
a a
a a
B
B
FAIXADEPISTA
DEMAISCLASSESECÓDIGOS
1/R
1/R
1/R
1/R
ÁREADE
APROXIMAÇÃO
ÁREADE
APROXIMAÇÃO
CORTEAA CORTEBB
DISNÍVELDE45m
EMRELAÇÃOA
ELEVAÇÃODO
AERÓDROMO
DISNÍVELDE45m
EMRELAÇÃOA
ELEVAÇÃODO
AERÓDROMO
Aula 08 - Aeroportos
Apostila de Aeroportos
101
DIMENSÕES
CLASSE DO AERÓDROMO
VFR
IFR - NÃO
PRECISÃO IFR – PRECISÃO
CÓDIGO DE PISTA
CÓDIGO DE
PISTA CÓDIGO DE PISTA
1 e 2 3 e 4 1 e 2 3 e 4 1, 2, 3 e 4
a
6° 6° 9° 9° 9°
10% 10% 15% 15% 15%
R
5 7 5 7 7
20% 14,3% 20% 14,3% 14,3%
Obs.: IFR-PRECISÃO CAT II e CAT III somente pistas 3 e 4.
1.11. Superfície Horizontal Interna
• Definição: Plano horizontal formado por semicírculos centrados nas cabeceiras da
pista, que se estende para fora dos limites das Áreas de Aproximação e Transição,
com desnível de 45 m em relação à elevação do aeródromo.
• Finalidade: Proteger o circuito de tráfego visual do aeródromo e as manobras que
antecedem a aproximação e o pouso.
FIGURA 8.05 – Superfície Horizontal Interna
Aula 08 - Aeroportos
Apostila de Aeroportos
102
Obs.: IFR-PRECISÃO CAT II e CAT III somente pistas 3 e 4.
1.12. Superfície Cônica
• Definição: Superfície que se estende em rampa de 20:1 para fora dos limites
externos da Área Horizontal Interna.
• Finalidade: A exemplo da área horizontal interna tem a finalidade de proteger o
circuito de tráfego visual do aeródromo e as manobras que antecedem a
aproximação e o pouso.
FIGURA 8.06 – Superfície Cônica
DIMENSÕES
CLASSE DO AERÓDROMO
VFR
IFR - NÃO
PRECISÃO IFR - PRECISÃO
CÓDIGO DE PISTA
CÓDIGO DE
PISTA
CÓDIGO DE
PISTA
1 2 3 e 4 1 e 2 3 e 4 1 e 2 3 e 4
D m 2000 2500 4000 3500 4000 3500 4000
Aula 08 - Aeroportos
Apostila de Aeroportos
103
PARÂMETROS CLASSE DO AERÓDROMO
VFR IFR NÃO PRECISÃO IFR – PRECISÃO
CÓDIGO DE PISTA CÓDIGO DE PISTA CÓDIGO DE PISTA
1 2 3 4 1 e 2 3 4 1 e 2 3 e 4
R
20 20 20 20 20 20 20 20 20
5% 5% 5% 5% 5% 5% 5% 5% 5%
h m 35 55 75 100 60 75 100 60 100
Obs.: IFR-PRECISÃO CAT II e CAT III somente pistas 3 e 4.
1.13.Especificações para Superfícies Limitadoras de Obstáculos de
Aeródromos
1.13.1 – Superfícies limitadoras de obstáculos de aeródromos aplicáveis às pistas para aproximação
visual (VFR):
• Superfície de Aproximação;
• Superfície de Decolagem;
• Superfície de Transição;
• Superfície Horizontal Interna; e
• Superfície Cônica.
1.13.2 – Superfícies limitadoras de obstáculos de aeródromos aplicáveis às pistas para aproximação
por instrumento não -precisão (IFR- NPrecisão):
• Superfície de Aproximação;
• Superfície de Decolagem;
• Superfície de Transição;
• Superfície Horizontal Interna; e
• Superfície Cônica.
Aula 08 - Aeroportos
Apostila de Aeroportos
104
1.13.3 – Superfícies limitadoras de obstáculos de aeródromos aplicáveis às pistas para aproximação
por instrumento precisão (IFR-Precisão):
• Superfície de Aproximação;
• Superfície de Decolagem;
• Superfície de Transição;
• Superfície Horizontal Interna;
• Superfície Cônica;
• Superfície de Pouso Interrompido;
• Superfície de Aproximação Interna; e
• Superfície de Transição Interna.
1.14.Requisitos para Elaboração do PBZPA
• Tipo de Operação do Aeródromo
o VFR (Visual Flight Rules)
o IFR (Instrument Flight Rules)
IFR não-precisão
IFR precisão
• Código da Pista
1.14.1. Tipo de operação do aeródromo
• VFR:
Aeródromo com operação de aeronaves sujeitas às regras de vôo visual.
• IFR não-precisão:
Aeródromo com operação de aeronaves em aproximação sujeitas às regras de vôo por
instrumento, que utilizam, para orientação, auxílios à navegação de não-precisão, tais
como: NDB, VOR e Radar de Terminal.
• IFR precisão
Aeródromo com operação de aeronaves em aproximação sujeitas às regras de vôo por
instrumento, que utilizam, para orientação, informações de azimute e rampa de planeio
Aula 08 - Aeroportos
Apostila de Aeroportos
105
que são fornecidas por auxílios à navegação de precisão, tais como: ILS ou radar de
aproximação de precisão.
1.14.2. Código da pista
• Comprimento Básico de Pista Requerido pela Aeronave: comprimento mínimo
pista de necessário para a decolagem com peso máximo de decolagem certificado,
ao nível médio do mar, em condições atmosféricas normais, vento nulo e gradiente
longitudinal nulo de pista, conforme apresentado no manual de vôo da aeronave,
determinado pela autoridade de certificação da aeronave, ou nas informações
equivalentes do fabricante da mesma.
CÓDIGO DA PISTA 1 2 3 4
COMPRIMENTO
BÁSICO DA PISTA
REQUERIDO PELA
AERONAVE
Menor que
800 m
De 800 m até
1200 m
exclusive
De 1200 m
até 1800 m
exclusive
1800 ou
maior
2. Plano de Zoneamento de Ruído
Documento de aplicação genérica ou específica em aeródromos, que estabelece as
restrições impostas ao aproveitamento das propriedades quanto ao uso e a ocupação
dentro das zonas de ruído de um aeródromo.
A legislação que rege sobre o plano de zoneamento de ruído de um aeródromo é
estabelecida pelo RBAC 161 da ANAC, de 29 de setembro de 2011.
Plano de Zoneamento de Ruído de Aeródromo – PZR: documento elaborado nos termos
do RBAC 161, que tem como objetivo representar geograficamente a área de impacto
do ruído aeronáutico decorrente das operações nos aeródromos e, aliado ao
ordenamento adequado das atividades situadas nessas áreas, e ser o instrumento que
Aula 08 - Aeroportos
Apostila de Aeroportos
106
possibilita preservar o desenvolvimento dos aeródromos em harmonia com as
comunidades localizadas em seu entorno.
2.1.Tipos de Plano de Zoneamento de Ruído - PZR
Plano Básico de Zoneamento de Ruído – PBZR: Plano de Zoneamento de Ruído de
Aeródromo composto pelas curvas de ruído de 75 e 65 e elaborado nos termos do RBAC
161, a partir de perfis operacionais padronizados, conforme disposto na Subparte C.
Plano Específico de Zoneamento de Ruído – PEZR: Plano de Zoneamento de Ruído de
Aeródromo composto pelas curvas de ruído de 85, 80, 75, 70 e 65 e elaborado nos
termos deste RBAC, a partir de perfis operacionais específicos, conforme disposto na
Subparte D.
2.2.Critérios para definição do tipo de PZR
O operador de aeródromo deve utilizar o critério apresentado a seguir para
definir a obrigatoriedade de aplicação de um Plano Específico de Zoneamento de Ruído
– PEZR:
(1) para aeródromos com média anual de movimento de aeronaves dos últimos 3 (três)
anos superior a 7.000 (sete mil), deve ser aplicado um PEZR.
(2) para os demais aeródromos, é facultado ao operador de aeródromo escolher o tipo
de plano a ser elaborado, Plano Básico de Zoneamento de Ruído – PBZR ou PEZR.
A ANAC poderá solicitar a elaboração de um PEZR a qualquer aeródromo.
2.2.1. PLANO BÁSICO DE ZONEAMENTO DE RUÍDO - PBZR
O Plano Básico de Zoneamento de Ruído será definido pela curvas de ruído de 65 e 75,
cujos parâmetros são definidos de acordo com a tabela C-1, e os usos compatíveis e
incompatíveis na ocupação do solo serão definidos conforme as tabelas da Subparte E
do RBAC 161.
Aula 08 - Aeroportos
Apostila de Aeroportos
107
TABELA C-1- Dimensões (em metros) das Curvas de Ruído de 75 e 65
Movimento anual Classe L1 R1 L2 R2
Até 400 1 70 30 90 60
De 401 a 2.000 2 240 60 440 160
De 2.001 a 4.000 3 400 100 600 300
De 4.001 a 7.000 4 550 160 700 500
2.2.2 PLANO ESPECÍFICO DE ZONEAMENTO DE RUÍDO – PEZR
As cinco curvas de ruído que compõem o PEZR são calculadas por meio de programa
computacional que utilize metodologia matemática apropriada para a geração de
curvas, na métrica DNL.
(1) O operador de aeródromo deve calcular as curvas de ruído para o sistema de pistas
de pouso e decolagem previsto no planejamento, para a expansão da infraestrutura
aeroportuária, considerando a estimativa do número de movimentos e tipos de
aeronaves, ao final do seu horizonte de planejamento.
(2) O operador de aeródromo que se enquadre nos critérios de exigibilidade de Plano
Diretor – PDIR deve considerar o planejamento para a expansão da infraestrutura
aeroportuária contido no respectivo plano.
Aula 09 - Aeroportos
Apostila de Aeroportos
108
AULA 09
1. O Terminal de Passageiros
Conceituação: O Terminal de Passageiros (TPS ou TEPAX) de um aeroporto é a
interface entre o “Lado Terra” e o “Lado Ar”. Isto é, faz a ponte entre os modos de
transporte terrestre (acesso/egresso) e o transporte aéreo.
A
C
E
S
S
O
V
I
Á
R
I
O
MEIO-FIO TPS PÁTIO
CHEGADAS
PASSAGEIROS
ISOLADOS
SAÍDAS
EMBARQUE
TRÂNSITO
DESEMBARQUE
PARTIDA
CHEGADA
A
C
E
S
S
O
A
É
R
E
O
PASSAGEIROS
EM GRUPOS
COMPONENTES
LADO TERRESTRE LADO AÉREO
1.1.Funções Básicas do Terminal
• Mudança Meio de Transporte: terrestre para o aéreo e vice-versa;
• Processamento e Acúmulo: passageiro e bagagens; e
• Transferência: passageiros e bagagens entre aeronaves.
1.2.Concepções Básicas de um TPS
1.2.1. Forma do Terminal
• LINEAR;
• SATÉLITE; e
• FINGER PIER.
1.2.2. Nível do Processamento
• 1 NÍVEL – Embarque e Desembarque mesmo andar;
Aula 09 - Aeroportos
Apostila de Aeroportos
109
• 1 ½ NÍVEL – Embarque e Desembarque com Mezanino; e
• 2 NÍVEIS – Embarque e Desembarque andares diferentes.
1.3.Fluxos no Terminal de Passageiros
• Embarque: passageiros e cargas;
• Desembarque: passageiros e cargas; e
• Trânsito: passageiros e cargas.
1.3.1. Demanda do Transporte Aéreo
Volume Anual de Passageiros , Passageiros no Dia Pico do Mês de Maior Movimento e
Número de Passageiros na Hora Pico. (DAC, Curvas da INFRAERO, TPHP – Typical Peak
Hour Passenger).
1.3.2. Dimensionamento do TPS (Doméstico/Internacional)
• Área Global: adota-se índice global para área total operacional (FAA Internacional
= 18 a 24 m2/PHP. STBA Internacional 12 a 25 m2/PHP e Doméstico = 6 a 15
m2/PHP. Alves – Doméstico 9 m2/PHP e Strongman – 4,5 m2/PHP em pequenos
Aeroportos).
• Área por Componentes: estimativa da área operacional de cada componente no
embarque e desembarque.
1.4.Principais Componentes Operacionais
1.4.1. Embarque
• Área do saguão de embarque
• Área de processamento nos balcões
• Área de pré-embarque
• Área de pré-embarque internacional
• Área de triagem e despacho de bagagens
1.4.2. Desembarque
• Área do saguão de desembarque;
• Área de desembarque internacional;
• Área de restituição de bagagens;
• Área para recepção de bagagens.
Aula 09 - Aeroportos
Apostila de Aeroportos
110
1.4.2.1. Trânsito
• Área de trânsito.
1.4.2.2. Índices e Áreas
• Selecionar o melhor local;
• Detalhamento do local, posteriormente.
1.4.3. Parâmetros de Interesse
• Selecionar;
• Detalhamento do local, posteriormente.
1.4.4. Perfil do Passageiro
• Tese ITA – POPTA (GOLDNER, 1991).
1.5.Bibliografia
• IATA (1995) Airport Development Reference Manual, 8th Edition.
• ALVES, C.J et all (2003) A Busca de Índices para Dimensionamento de Terminais
Aeroportuários, XVII Congresso ANPET, Rio de Janeiro, p. 1003-1016.
• ITA (1988) Dimensionamento Básico com o Momento de Maior Solicitação,
Convênio INFRAERO.
• GOLDNER, N. (1991) Uma Metodologia para Identificar o Perfil Operacional do
Passageiro de Transporte Aéreo no Aeroporto, Dissertação de Tese de Mestrado,
São José dos Campos.
AIRPORT
SERVICE ROAD
ROADWAY
TAXIWAY
FIG. 1 EXEMPLE OF PIER CONCEPT (CENTRALIZED TERMINAL)
PLAN VIEW
PASSENGER TERMINAL COMPLEX
Terminal Concepts - General
FIGURA 9.01 - International Air Transport Association
Apostila de Aeroportos
PARKING LIMIT LINE
TERMINAL
LANDSIDE
AUTO PARKING
AIRSIDE
TAXIWAY TAXIWAY
PIER CONCEPT
FIG. 1 EXEMPLE OF PIER CONCEPT (CENTRALIZED TERMINAL)
PASSENGER TERMINAL COMPLEX
Terminal Concepts - General
International Air Transport Association
Aula 09 - Aeroportos
111
AIRSIDE
CORRIDOR
TAXIWAY
FIG. 1 EXEMPLE OF PIER CONCEPT (CENTRALIZED TERMINAL)
ATRM 3.4.1.
FIGURA 9.02 - Airport Terminals Reference Manual
Apostila de Aeroportos
Airport Terminals Reference Manual
Aula 09 - Aeroportos
112
Aula 09 - Aeroportos
Apostila de Aeroportos
113
AUTO PARKING
AIRPORT
SERVICE ROAD
TERMINAL
LANDSIDE
LINEAR CONCEPT
FIG. 3 EXAMPLE OF LINEAR CONCEPT (CENTRALIZED TERMINAL)
PLAN VIEW
PASSENGER TERMINAL COMPLEX
Terminal Concept - General
ATRM 3.4.1
PARKING LIMIT LINE
AIRSIDE CORRIDOR
AIRSIDE
FIGURA 9.03 - International Air Transport Association
Aula 09 - Aeroportos
Apostila de Aeroportos
114
AUTO
PARKING
AIRPORT
SERVICE
ROAD
LANDSIDE
LINEAR CONCEPT
FIG. 4 EXAMPLE OF LINEAR CONCEPT (DECENTRALIZED TERMINAL)
PASSENGER TERMINAL COMPLEX
Terminal Concept - General
ATRM 3.4.1
PARKING LIMIT LINE
AIRSIDE
EFFECTIVE: DEC. 1976
TERMINAL
FIGURA 9.04 - Airport Terminals Reference Manual
FIGURA 9.05 - International Air Transport Association
FIG. 5 EXEMPLE OF TRANSPORTER CONCEPT (CENTRALIZED TERMINAL REMOTE APRON)
PASSENGER TERMINAL COMPLEX
Terminal Concepts - General
PLAN VIEW
AIRPORT
SERVICE
ROADAIRSIDE
CORRIDOR
Apostila de Aeroportos
International Air Transport Association
FIG. 5 EXEMPLE OF TRANSPORTER CONCEPT (CENTRALIZED TERMINAL REMOTE APRON)
PASSENGER TERMINAL COMPLEX
Terminal Concepts - General
AIRSIDE
TERMINAL
AUTO
PARKING
LANDSIDE
TRANSPORTER CONCEPT
TRANSPORTER
(more)
AIRPORT
SERVICE
TRANSPORTER ROUTE
PARKING LIMIT LINE
Aula 09 - Aeroportos
115
FIG. 5 EXEMPLE OF TRANSPORTER CONCEPT (CENTRALIZED TERMINAL REMOTE APRON)
ATRM 3.4.1.
FIG. 7 EXEMPLE OF TERMINAL UNIT ARRANGEMENTS
PASSENGER TERMINAL COMPLEX
Terminal Concept - General
PLAN VIEW
LEGEND:
1 AIRFIELDFACILITIES
2
3
4
WALKING DISTANCES
PASSENGER VOLUMES
KERB FACTORS
FIGURA 9.06 - International Air Transport Association
Apostila de Aeroportos
FIG. 7 EXEMPLE OF TERMINAL UNIT ARRANGEMENTS
PASSENGER TERMINAL COMPLEX
Terminal Concept - General
(more)
FUTURE
AIRSIDE
1
2
AIRFIELDFACILITIES
WALKING DISTANCES
PASSENGER VOLUMES
International Air Transport Association
Aula 09 - Aeroportos
116
ATRM3.4.1.
FUTURE
LANDSIDE
UNIT 'B'
UNIT 'A'
3 4
Aula 09 - Aeroportos
Apostila de Aeroportos
117
FIGURA 9.07 - Airport Terminals Reference Manual
Aula 09 - Aeroportos
Apostila de Aeroportos
118
FIGURA 9.08 - Airport Terminals Reference Manual
Aula 09 - Aeroportos
Apostila de Aeroportos
119
Passenger Terminal
FIGURA 9.09 - Illustration of a one Level Passenger Terminal Building
Aula 09 - Aeroportos
Apostila de Aeroportos
120
FIGURA 9.10 - Illustration of a 1½ Level Passenger Terminal Building
Aula 09 - Aeroportos
Apostila de Aeroportos
121
FIGURA 9.11 - Illustration of a Two Level Passenger Terminal Building
Aula 09 - Aeroportos
Apostila de Aeroportos
122
Tabela 1: Componentes principais do TPS
Componentes Operacionais e Não Operacionais
Classificação Embarque Desembarque
Operacionais
meio-fio de embarque portão de desembarque
saguão de embarque
saúde dos portos*
(ex: epidemias)
check-in
inspeção fito-sanitária*
(ex: plantas comidas)
controle de passaportes controle de passaportes*
vistoria de segurança alfândega*
sala de pré-embarque saguão de desembarque
portão de embarque meio-fio de desembarque
Não Operacionais
lojas aluguel de veículos
lanchonetes /
restaurantes
reservas de hotéis
bancos agências de turismo
telefones informações
sanitários sanitários
*Componentes exclusivos de aeroportos com operação internacional
Fonte: Feitosa, 2000
Aula 09 - Aeroportos
Apostila de Aeroportos
123
XVII Congresso de Pesquisa e Ensino em Transportes
Tabela 2: Índices de dimensionamento da ICAA
COMPONENTE
NÍVEL DE SERVIÇO (m²/ocupante)
A B C D E F
Check-in 1,6 1,4 1,2 1,0 0,8
Componente em
colapso (valores <
E)
Espera / Circulação 2,7 2,3 1,9 1,5 1,0
Sala de pré-embarque 1,4 1,2 1,0 0,8 0,6
Restituição de bagagens (excluído o
equipamento) 1,6 1,4 1,2 1,0 0,8
Pré-inspeção no desembarque intern.
1,4 1,2 1,0 0,8 0,7
NÍVEL DE SERVIÇO DESCRIÇÃO
A
Nível de serviço excelente, fluxos livres, sem
atrasos, rotas diretas, excelente nível de
conforto.
B
Alto nível de serviço, fluxos estáveis, alto nível
de conforto.
C
Bom nível de serviço, fluxos estáveis,
processamento aceitável, subsistema em
balanço.
D
Nível de serviço adequado, fluxos instáveis,
atrasos, condições aceitáveis por pequenos
períodos.
E
Nível de serviço inaceitável, fluxos instáveis,
subsistemas desbalanceados, capacidade limite
do sistema.
F
Sistema em caos, congestionamento e atrasos
inaceitáveis.
Fonte: ICAA. 1979 / Transport Canada. 1979
Aula 09 - Aeroportos
Apostila de Aeroportos
124
XVII Congresso de Pesquisa e Ensino em Transportes
Tabela 3: Quadro Comparativo (sala de pré-embarque)
SALA DE PRÉ-EMBARQUE
Método Nível de Serviço Unidade
Alves
A (Internacional) 1,50 m²/pax
B ( Doméstico) 1,30 m²/pax
C (Doméstico) 1,10 m²/pax
D (Regional) 0,90 m²/pax
Braaksma
Sentado = 2,30 m²/pax
Em pé = 1,40 m²/pax
FAA
Sentado = 1,40 m²/pax
Em pé = 1,00 m²/pax
ICAA
A (Excelente) 1,40 m²/pax
B (Alto) 1,20 m²/pax
C (Bom) 1,00 m²/pax
D (Adequado) 0,80 m²/pax
E (Inaceitável) 0,60 m²/pax
F (Colapso) < 0,60 m²/pax
CECIA 1,50 m²/pax
TRB
Padrão (IATA) 0,80 m²/pax por assento na aeronave
Colapso (IATA) < 0,60 m²/pax para espera > 15 min
Padrão (FAA) 0,65 a 1,00 m²/pax por assento na aeronave
Padrão (FAA) < 1,00 a 1,50 m²/pax
STBA 1,00 a 1,50 m²pax
Widmer &
Silva
Regional 0,80 a 1,00 m²/pax
Aula 09 - Aeroportos
Apostila de Aeroportos
125
XVII Congresso de Pesquisa e Ensino em Transportes
Tabela 4: Quadro Comparativo (área de restituição de bagagens)
ÁREA DE RESTITUIÇÃO DE BAGAGENS
Método Nível de Serviço Unidade
Alves
A (Internacional) 2,00 m²/pax
B ( Doméstico) 1,60 m²/pax
C (Doméstico) 1,20 m²/pax
D (Regional) 0,90 m²/pax
Braaksma ------- 1,40 m²/pax
FAA -------
Espaço de 4 a 5 m nas adjacências da esteira,
somente para a espera de bagagens.
ICAA
A (Excelente) 1,60 m²/pax
B (Alto) 1,40 m²/pax
C (Bom) 1,20 m²/pax
D (Adequado) 1,00 m²/pax
E (Inaceitável) 0,80 m²/pax
F (Colapso) < 0,80 m²/pax
CECIA ------- Método Analítico de Zaniewski
TRB
Alto a excelente (IATA) > 1,40 m²/pax para qualquer tempo de espera
Colapso (IATA) < 0,80 m²/pax para espera > 15 min
Pico de 20 minutos (FAA) 0,60 m²/pax para qualquer tempo de espera
STBA -------
3m entre a esteira e a parede
6m entre duas esteiras
Widmer &
Silva
Regional 0,80 a 1,00 m²/pax
Braaksma – Autor
ICAA – Organização do Canadá
CECIA – Antigo IAC
STBA – Organização Francesa
Aula 09 - Aeroportos
Apostila de Aeroportos
126
XVII Congresso de Pesquisa e Ensino em Transportes
Tabela 5: Quadro Comparativo (saguão de embarque)
SAGUÃO DE EMBARQUE
Método Nível de Serviço Unidade (m²/usuário)
Alves
A (Internacional) 2,25
B ( Doméstico) 1,80
C (Doméstico) 1,45
D (Regional) 1,30
Braaksma
Saguão principal = 1,40
Saguão secundário = 2,30
FAA 1,90
ICAA
A (Excelente) 2,70
B (Alto) 2,30
C (Bom) 1,90
D (Adequado) 1,50
E (Inaceitável) 1,00
F (Colapso) < 1,00
CECIA 5,00
TRB
Adequado 1,20
Colapso < 1,00 para espera > 15 min.
STBA 2,00
Widmer &
Silva
Regional 3,00
Aula 09 - Aeroportos
Apostila de Aeroportos
127
XVII Congresso de Pesquisa e Ensino em Transportes
Tabela 6: Quadro comparativo (check-in)
CHECK-IN
Método Nível de Serviço
Largura do
Balcão
(m/posição)
Profundidade
(m)
Fila
(m/pessoa)
Circulação
(m)
Alves
A (Internacional) 3,00 4,50 0,70 6,00
B (Doméstico) 2,50 4,00 0,60 4,50
C (Doméstico) 2,00 3,50 0,50 3,00
D (Regional) 1,50 3,00 0,40 1,50
Método Nível de Serviço Área de filas (m²/pessoa)
Fila
(m/pessoa)
Circulação
(m²/pessoa)
Braaksma 1,10 0,70 2,30
Método Nível de Serviço
Largura do
Balcão
(m/posição)
Profundidade
(m)
Fila
(m/pessoa)
Circulação
(m)
FAA 1,50 3,00 0,90 6,00 a 9,00
Método Nível de Serviço Área de filas (m²/pessoa)
ICAA
A (Excelente) 1,60
B (Alto) 1,40
C (Bom) 1,20
D (Adequado) 1,00
E (Inaceitável) 0,80
F (Colapso) < 0,80
Método Nível de Serviço Área de filas (m²/pessoa)
CECIA Método Analítico de Zaniewski
Método Nível de Serviço Área (m²/pessoa)
TRB
A (excelente) IATA > 1,60
E (Inadequado) IATA < 1,00 para espera maior que 15 min.
Colapso (IATA) < 0,80 para espera maior que 15 min.
Padrão (FAA) Balcão multifuncional = 1,40 - 2,20
Padrão (FAA) Somente recepção de bagagem = 1,10 - 0,70
Padrão (FAA) Somente verificação de passagens = 0,40 - 0,70
Método Nível de Serviço
Largura do
Balcão
Profundidade
(m)
Comprimento para Fila
(m)
STBA 1,50 a 2,00 3,00 a 4,00 10,00. exceto a circulação
Método Nível de Serviço Área (m²/pessoa)
Widmer &
Silva
Regional 3,00. incluindo a circulação
Aula 09 - Aeroportos
Apostila de Aeroportos
128
FIGURA 9.12 - Fluxo de Passageiros e Bagagens no TPS
Aula 09 - Aeroportos
Apostila de Aeroportos
129
FIGURA 9.13 - Airport Terminals Reference Manual
Aula 09 - Aeroportos
Apostila de Aeroportos
130
FIGURA 9.14 - Airport Terminals Reference Manual
Aula 09 - Aeroportos
Apostila de Aeroportos
131
Dimensionamento de Terminal de Passageiros
Método de Ana Glória Medeiros, ITA, 2004.
Fator de Hora-Pico de Aeroportos
Índices de concentração propostos pela FAA
Faixa de demanda anual de
passageiros
Índice de Concentração – FAA (%)
Abaixo 100 mil 0,200
100 mil até 499,99mil 0,130
500 mil até 999,99mil 0,080
1 milhão até 9,9 milhões 0,050
10 milhões até 19,9 milhões 0,045
20 milhões até 29,9 milhões 0,040
Acima de 30 milhões 0,035
Proposta de índices de concentração para os aeroportos brasileiros
Faixa de demanda anual de
passageiros
Índice de Concentração – Brasil
Limite inferior faixa
(%)
Limite superior faixa
(%)
Abaixo 100 mil 0,399 0,169
100 mil até 399,99mil 0,118 0,084
400 mil até 999,99mil 0,070 0,064
1 milhão até 2,99 milhões 0,051 0,046
3 milhões até 7,9 milhões 0,038 0,036
Acima de 30 milhões 0,027 0,024
Fonte: ANAC - 2007
ARÉA TOTAL DO TPS
Nível de serviço
Índices de dimensionamento (m²/pax)
Tipo de aeroporto
Internacional Doméstico Regional
A – Alto 25,00 18,00 15,00
B – Bom 22,00 15,00 12,00
C – Regular 18,00 12,00 10,00
SAGUÃO DE EMBARQUE
Nível de serviço
Índices de dimensionamento (m²/usuário)
Tipo de aeroporto
Internacional Doméstico Regional
A – Alto 2,50 2,20 1,80
B – Bom 2,00 1,80 1,50
C – Regular 1,60 1,40 1,20
Aula 09 - Aeroportos
Apostila de Aeroportos
132
SAGUÃO DE EMBARQUE
Nível de serviço
Quantidade de assentos (% do nº de usuário)
Se tiver sala de pré-
embarque
Se não tiver sala de
pré-embarque
A – Alto 25 70
B – Bom 15 60
C – Regular 10 50
SALA DE PRÉ-EMBARQUE
Nível de serviço
Índices de dimensionamento (m²/pax)
Tipo de aeroporto
Internacional Doméstico Regional
A – Alto 1,60 1,40 1,20
B – Bom 1,40 1,20 1,00
C – Regular 1,10 1,00 0,80
SALA DE PRÉ-EMBARQUE
Nível de serviço
Largura do corredor de acesso ao portão de embarque (m)
Tipo de aeroporto
Internacional Doméstico Regional
A – Alto 3,00 2,50 2,00
B – Bom 2,50 2,00 1,50
C – Regular 2,00 1,50 1,00
SALA DE PRÉ-EMBARQUE
Nível de serviço
Quantidade de assentos
(% do nº de passageiros)
A – Alto 80
B – Bom 70
C – Regular 60
CHECK IN
AEROPORTO INTERNACIONAL
Nível de
serviço
Largura do
balcão
(m/posição)
Profund.
(m)
Fila
(m/pax)
Nº
máximo
de pax na
fila/balcão
Tempo de
atend./pax
(min) Circ.
(m)
Área
(m²/balcão)
Vôo
Int.
Vôo
dom.
A – Alto 2,50 4,00 1,00 8 2-3 1-2 6,00 45,00
B – Bom 2,00 3,50 0,90 10 2-3 1-2 5,00 35,00
C – Regular 1,50 3,00 0,80 12 2-3 1-2 4,00 24,90
Aula 09 - Aeroportos
Apostila de Aeroportos
133
CHECK IN
AEROPORTO DOMÉSTICO
Nível de
serviço
Largura do
balcão
(m/posição)
Profund.
(m)
Fila
(m/pax)
Nº
máximo
de pax na
fila/balcão
Tempo de
atend./pax
(min)
Circ.
(m)
Área
(m²/balcão)
A – Alto 2,00 3,50 0,90 8 1-2 5,00 31,40
B – Bom 1,80 3,00 0,80 10 1-2 4,00 27,00
C – Regular 1,40 2,80 0,70 12 1-2 3,00 19,88
CHECK IN
AEROPORTO REGIONAL
Nível de
serviço
Largura do
balcão
(m/posição)
Profund.
(m)
Fila
(m/pax)
Nº
máximo
de pax na
fila/balcão
Tempo de
atend./pax
(min)
Circ.
(m)
Área
(m²/balcão)
A – Alto 1,80 3,00 0,80 8 1-2 4,00 24,12
B – Bom 1,50 2,80 0,70 10 1-2 3,00 19,20
C – Regular 1,30 2,50 0,60 12 1-2 2,00 15,21
ÁREA PARA VENDAS E RESERVAS DE BILHETES
Nível de serviço
Índice de dimensionamento (m²/balcão)
Tipo de aeroporto
Internacional Doméstico Regional
A – Alto 14,04 9,90 6,48
B – Bom 12,30 8,16 5,70
C – Regular 9,84 6,90 5,04
BALCÔES PARA VENDAS E RESERVAS DE BILHETES
Porcentagem de número de balcões para check-in
Tipo de aeroporto
Internacional Doméstico Regional
35 25 15
MÍNIMO DE UM BALCÃO DE ATENDIMENTO
ÁREA PARA TRIAGEM E DESPACHO DE BAGAGENS
Índices de dimensionamento (m²/vôo)
Tipo de aeroporto
Internacional Doméstico Regional
40,00 40,00 20,00
ÁREA PARA TRIAGEM E DESPACHO DE BAGAGENS
Índices de dimensionamento (m²/vôo)
Tipo de aeroporto
Internacional Doméstico Regional
40,00 40,00 20,00
Aula 09 - Aeroportos
Apostila de Aeroportos
134
ÁREA DE VISTORIA DE SEGURANÇA
Tipo de aeroporto
Internacional Doméstico Regional
20,00 m²/módulo 16,00 m²/modulo 13,50 m²/modulo
Tempo de atendimento por pax (seg) Processamento (pax/h)
20 180
ÁREA DE VISTORIA DE PASSAPORTES
Aeroporto Internacional
Nível de serviço Índice de dimensionamento (m²/pax)
A – Alto 1,20
B – Bom 1,00
C – Regular 0,80
ÁREA DE VISTORIA DE PASSAPORTES
Aeroporto Internacional
Balcões para atendimento de passageiros
Nº de agents
(un.)
Área
(m²)
Tempo médio de
atendimento
(seg)
Processamento
(pax/h)
2 8,00-14,70 30 240
4 15,00-27,30 30 480
SAGUÃO DE DESEMBARQUE
Nível de serviço
Índices de dimensionamento (m²/usuário)
Tipo de aeroporto
Internacional Doméstico Regional
A – Alto 2,00 1,80 1,50
B – Bom 1,80 1,60 1,20
C – Regular 1,50 1,20 1,00
SAGUÃO DE DESEMBARQUE
Nível de
serviço
Quantidade de assentos
(% do número de usuários)
A – Alto 15
B – Bom 10
C – Regular 5
ÁREA DE RESTITUIÇÃO DE BAGAGENS
Nível de serviço
Índices de dimensionamento (m²/pax)
Tipo de aeroporto
Internacional Doméstico Regional
A – Alto 2,00 1,60 1,30
B – Bom 1,60 1,40 1,10
C – Regular 1,30 1,10 0,80
Aula 09 - Aeroportos
Apostila de Aeroportos
135
ÁREA DE RESTITUIÇÃO DE BAGAGENS
Tipo de vôo
Quantidade de
bagagens/pax
% de carrinhos/pax
Internacional 1,2 80
Doméstico 0,9 70
Regional 0,5 60
ÁREA DE ALFÂNDEGA
Aeroporto Internacional
Nível de serviço Índice de dimensionamento (m²/pax)
A – Alto 1,50
B – Bom 1,20
C – Regular 0,90
ÁREA DE ALFÂNDEGA
Aeroporto Internacional
Balcões para atendimento de passageiros
Nº de agents
(un.)
Área
(m²)
Tempo médio de
atendimento
(min)
Processamento
(pax/h)
2 17,48-29,16 2 60
SANITÁRIOS MASCULINOS
Índices de dimensionamento (m²)
Nível de serviço Lavatório B. Sanitária Mictório Circulação
A – Alto 1,40 2,00 1,10 2,38
B – Bom 1,20 1,80 0,90 2,11
C – Regular 1,00 1,50 0,70 1,55
SANITÁRIOS FEMININOS
Índices de dimensionamento (m²)
Nível de serviço Lavatório B. Sanitária Circulação
A – Alto 1,40 2,00 1,85
B – Bom 1,20 1,80 1,68
C – Regular 1,00 1,50 1,20
Aula 01 - Aeroportos
Apostila de Aeroportos
136
MÓDULO II
AULA 01
1. Pavimento De Aeroportos
1.1.Dimensionamento de Pavimentos
Dimensionar um pavimento significa determinar a sua espessura total, bem como
as espessuras de cada uma de suas camadas e especificar de quais materiais devem as
mesmas ser constituídas.
1.2. Conceitos Fundamentais
• Pavimento: Estrutura constituída de uma ou mais camadas de materiais
preparados ou beneficiados.
• Funções do Pavimento:
o Distribuir as cargas do tráfego
o Fornecer condições de conforto e segurança operacionais
o Resistir aos esforços horizontais (desgaste)
Tipos de Pavimentos
• Pavimento Flexível
• Pavimento Rígido
Aula 01 - Aeroportos
Apostila de Aeroportos
137
1.3. Características das Aeronaves: Tipos de Trem de Pouso
1.4. Mecânica dos Pavimentos
CARREGAMENTO POR RODA
95% DO PESO BRUTO DA
AERONAVE É CARREGADO PELO
TREM DE POUSO PRINCIPAL
Revestimento
Base
Subleito
Pavimento Flexível
Placa
Sub-base
Subleito
Pavimento Rígido
5% 95%
rodas
duplas
rodas
simples
rodas
duplas
em
tandem
trens
de
pouso
especiais
Aula 01 - Aeroportos
Apostila de Aeroportos
138
1.5.Dimensionamento de Pavimentos
Método – Federal Aviation Administration
AC 150/5320 – 6E, 30 de setembro de 2009. Esta “Advisory Circular” cancelou a AC
anterior (150/5320 - 6D de 7/7/95), que utilizava no dimensionamento de pavimentos
aeroportuários o conceito da aeronave de projeto e o uso de ábacos das aeronaves.
A nova AC passou a adotar o programa FAARFIELD desenvolvido para a FAA (disponível
para download gratuito no website), que adota o conceito de dimensionamento por
camadas elásticas e leva em conta o efeito acumulativo de todas as aeronaves sobre o
pavimento em estudo, não se utilizando mais do conceito da aeronave de projeto.
TABLE 3-10. Exemplo de um Tráfego de Aeronaves
No. Name Gross
Weight, lb
Annual
Departures
Annual Growth,
%
1 A320-100 150,796 600 0.00
2 A340-600 std 805,128 1,000 0.00
3 A340-600 std Belly 805,128 1,000 0.00
4 A380-800 1,239,000 300 0.00
5 B737-800 174,700 2,000 0.00
6 B747-400 877,000 400 0.00
7 B747-400ER 913,000 300 0.00
8 B757-300 271,000 1,200 0.00
9 B767-400 ER 451,000 800 0.00
10 B777-300 ER 777,000 1,000 0.00
11 B787-8 478,000 600 0.00
TABLE 3-11. Informação da Estrutura do Pavimento Projetado para o Exemplo
No. Type Thickness, in Modulus, psi Poisson’s Ratio
1 P-401/ P-403 AC Surface 5.00 200,000 0.35
2 P-401/ P-403 St (flex) 11.06 400,000 0.35
3 P-209 Cr Ag 18.78 51,440 0.35
4 Subgrade 0.00 12,000 0.35
Aula 01 - Aeroportos
Apostila de Aeroportos
139
Resultado apresentado pela tela do programa FAARFIELD no item “Structure”
ao final do dimensionamento do pavimento (Design Structure) do Exemplo.
O programa possui um roteiro que explica como se deve utilizá-lo no dimensionamento
de pavimentos aeroportuários no item “Demonstration”. O relatório do resultado do
dimensionamento pode ser obtido no item “Notes”, onde se poderá imprimir ou copiar o
relatório para o editor de textos.
Aula 01 - Aeroportos
Apostila de Aeroportos
140
Para um melhor aprendizado dos alunos que estão se iniciando no projeto de
pavimentos aeroportuários é interessante o conhecimento do método do “Corpo de
Engenheiros Americanos” (USACE), que era utilizado anteriormente e que constava da
AC 150/5320 – 6D, onde se emprega o conceito da aeronave de projeto e se utiliza os
ábacos estabelecidos para as diversas aeronaves de forma genérica ou específica.
MÉTODO DO CORPO DE ENGENHEIROS AMERICANOS (USACE)
1. Volume de tráfego anual (decolagens)
2. Peso Máximo de decolagem
3. Configuração do trem de pouso das aeronaves
4. Determinar a aeronave de projeto (maior espessura de pavimento)
5. Capacidade de suporte do subleito
• Índice de Suporte Califórnia – CBR
• Módulo de Reação do Subleito – K
6. Resistência à Flexão do Concreto
• Módulo de Ruptura do Concreto – MR
7. Determinar o número equivalente anual de decolagens para aeronave de projeto
Log R1 = Log R2 x (W2/W1)1/2
R1 – Nº equivalente anual de decolagens da Aeronave de projeto
R2 – Nº anual de decolagens das Aeronaves expresso em trem de pouso da Aeronave
de projeto
W1 – Carga da Roda da Aeronave projeto
W2 – Carga da Roda das Aeronaves
Determinação da Equivalência de Partidas Anuais para a Aeronave de Projeto
Fatores de conversão para configuração de trem de pouso da aeronave de projeto –
(FAA)
RODA SIMPLES RODA DUPLA 0.8
RODA SIMPLES DUPLO TANDEM 0.5
RODA DUPLA DUPLO TANDEM 0.6
DUPLO DUPLO TANDEM DUPLO TANDEM 1.0
DUPLO TANDEM RODA SIMPLES 2.0
DUPLO TANDEM RODA DUPLA 1.7
RODA DUPLA RODA SIMPLES 1.3
DUPLO DUPLO TANDEM RODA DUPLA 1.7
DE PARA
MULTIPLICAR
POR
Aula 01 - Aeroportos
Apostila de Aeroportos
141
Exercício
Projetar um pavimento de um aeroporto para a seguinte previsão de tráfego:
AERONAVE
TIPO DE
TREM DE
POUSO
PREVISÃO
DAS
DECOLAGENS
ANUAIS
PESO
MÁXIMO
DECOLAGEM
(LBS)
727 - 100 DUPLO 3760 160000
727 - 200 DUPLO 9080 190500
707 - 320 - B
DUPLO
TANDEM
3050 327000
DC - 9 - 30 DUPLO 5800 108000
CV - 880
DUPLO
TANDEM
400 184500
737 - 200 DUPLO 2650 115500
L - 1011 - 100
DUPLO
TANDEM
1710 450000
747 - 100
DUPLO
DUPLO
TANDEM
85 700000
SOLUÇÃO:
1.1.1.1. Foi determinada a espessura do pavimento para cada aeronave da previsão,
através das curvas de projeto e chegou-se à conclusão que o 727 – 200 requer a
maior espessura do pavimento.
2.2.2.2. 727 – 200 Trem de pouso de roda dupla Todas as outras aeronaves da
previsão deverão ser grupadas em termos de configuração de roda dupla.
3.3.3.3. Assim as frequências serão transformadas, aplicando-se os coeficientes, para um só
tipo de trem de pouso.
4.4.4.4. Chegamos aos valores da tabela seguinte.
5.5.5.5. Assim, o pavimento será projetado para 16000 partidas anuais de uma aeronave de
roda dupla com 190500 lbs de peso. No entanto, o projeto deve servir para a
aeronave mais pesada, dentre as que fazem parte do tráfego, no que diz respeito à
profundidade de compactação, a espessura do revestimento, à drenagem, etc.
Aula 01 - Aeroportos
Apostila de Aeroportos
142
16241
737 - 200
L 1011 - 100
747 - 100
TREM DE
POUSO
TREM DE
POUSO
AERONAVE
DE PROJETO
DUPLODUPLO
AERONAVE
727 - 100
CV 880
727 - 200
DUPLO
DUPLO
TANDEM
DUPLO
DUPLO
TANDEM
DUPLO
DUPLO
TANDEM
CARREGAMENTO
POR RODA
AERONAVE
PROJETO
DECOLAGENS ANUAIS
DE AERONAVES DE
PROJETO
LogR1 = log3760
(38000/45240)
1/2
=
1891
45240
160000 x 0,95/4 =
38000
DECOLAGENS
EQUIPAMENTOS
TREM DUPLO
3760 - 3760
115500 x 0,95/4 =
27430
DUPLO
DUPLO
CARREGAMENTO POR
RODA
85 x 1,9 = 145
300000 x 0,95/8 =
35625
DUPLO 45240
LogR1 = log680
(21910/45240)1/2
=
94
LogR1 = log2650
(27430/45240)
1/2
=
463
LogR1 = log2907
(35625/45240)
1/2
=
1184
LogR1 = log145
(35625/45240)
1/2
=
83
45240400 x 1,7 = 680
184500 x 0,95/8 =
21910
45240
45240
300000 x 0,95/8 =
35625
1910 x 1,7 = 2907
2650 - 2650
DC 9 - 30 DUPLO
DUPLO
DUPLO
DUPLO
TOTAL
45240
45240
45240
9080
LogR1 = log5800
(25650/45240)
1/2
=
682
LogR1 = log5185
(38830/45240)
1/2
=
2764
9080 - 9080
3050 x 1,7 = 5185
5800 - 5800
190500 x 0,95/4 =
45240
327000 x 0,95/8 =
38830
108000 x 0,95/4 =
25650
DUPLO
707 - 320 B
DUPLO
TANDEM
Aula 01 - Aeroportos
Apostila de Aeroportos
143
FIGURA 1.01 - Projeto e seção típicas para pavimentos de pistas
NOTAS:
LARGURAS DA PISTA DE ACORDO COM A
CIRCULAR CONSULTIVA APLICÁVEL;
DECLIVES TRANSVERSAIS DE ACORDO COM A
CIRCULAR CONSULTIVA APLICÁVEL;
ESPESSURA DO REVESTIMENTO, DA BASE, PCC,
ETC. DE ACORDO COM O INDICADO NO PROJETO;
MÍNIMO DE 12" (30 cm) ATÉ O MÁXIMO
ADMINISSÍVEL DE 30" (90 cm);
PARA PISTAS COM LARGURA SUPERIOR A 150'
(45,7 m) HAVERÁ UM AUMENTO NESTA DIMENSÃO.
1
2
3
4
5
LEGENDA:
ESPESSURA = T
VARIAÇÃO DA ESPESSURA = T 0,7T
ESPESSURA = 0,9T
ESPESSURA = 0,7T
200' 200'
(61m)
PI PI
(61m)
TRANSIÇÕES
200'
(61m)
200'
(61m)
200'
(61m)
TRANSIÇÕES
A
A
TRANSIÇÕES
SUB-BASE
BASE
LARGURA DA PISTA
SUPERFÍCIEESPESSURA MÍNIMA
DO REVESTIMENTO
2" (5cm)
PCC
2
1
3
4
5
4
56 25' (7,6 m)
Aula 01 - Aeroportos
Apostila de Aeroportos
144
1.6.Dimensionamento e Pavimento Flexível
1.6.1. Camadas do Pavimento
a) Revestimento: NSMA 85–2
(Norma de Sistema do Ministério da Aeronáutica)
b) Base: NSMA 85–2
c) Sub-base: NSMA 85–2
d) Subleito: NSMA 85–2
1.6.2. Dados a Serem Considerados no Projeto
a) Valor do CBR do subleito
b) Valor do CBR da sub-base
c) Peso bruto da aeronave de projeto
d) Frequência anual de decolagens
• As curvas indicam a espessura total do pavimento necessária e a espessura do
revestimento (asphalt surfaces). A tabela 3-9 indica a espessura mínima da camada
de base para o tipo de aeronave e intervalo de carga de projeto.
• No caso de partidas anuais que excedem 25000 a espessura total do pavimento deve
ser aumentado de acordo coma tabela 3-5 e a superfície betuminosa de 1 polegada.
• As curvas são usadas para determinar a espessura total do pavimento crítico T, e as
exigências para a espessura da camada de superfície.
• O fator 0,9T para o pavimento não crítico se aplica à base e à sub-base; a espessura
da camada de revestimento deve ser aquela que é apresentada nas curvas de
projeto (ver recomendações do AC).
• A espessura mínima do total de pavimento não deve ser menor do que a espessura
total do pavimento requerido para um subleito de CBR 20 na curva de projeto
apropriada.
Aula 01 - Aeroportos
Apostila de Aeroportos
145
1.7. Espessura Mínima da Base
Lbs in mm
100
150
4
6
Duplo tandem
100000 - 250000
250000 - 400000
6
8
150
200
6 150
DC - 10/ L 1011 400000 - 600000
B - 747
400000 - 600000
600000 - 850000
6
8
150
200
757 - 767 200000 - 400000
C - 130
75000 - 125000
125000 - 175000
4
6
100
150
30000 - 50000
50000 - 75000Roda simples
AERONAVE
INTERVALO
CARGA-PROJETO
ESPESSURA MÍNIMA
BASE
Roda dupla
50000 - 100000
100000 - 200000
6
8
150
200
8 200
Aula 01 - Aeroportos
Apostila de Aeroportos
146
1.8. Tabelas de Equivalência para projeto de reforç
• Sub-base:
FATOR
BETUMINOSO 1,7 - 2,3
MATERIAL
BETUMINOSO MISTURADO A FRIO
BASE DE SOLO CIMENTO 1,5 - 2,0
BASE DE MACADAME 1,4 - 2,0
1,5 - 1,7
BASE TRATADA COM CIMENTO 1,6 - 2,3
• Base:
MATERIAL FATOR
BETUMINOSO 1,2 - 1,6
BETUMINOSO MISTURADO A FRIO 1,0 - 1,2
BASE TRATADA COM CIMENTO 1,2 - 1,6
Aula 01 - Aeroportos
Apostila de Aeroportos
147
FIGURA 1.02 - Curvas de projeto de pavimentos flexíveis para áreas críticas –
Trem de pouso de Roda Simples.
Aula 01 - Aeroportos
Apostila de Aeroportos
148
FIGURA 1.03 - Projeto de curvas para áreas críticas de pavimento flexível –
Roda Dupla
Aula 01 - Aeroportos
Apostila de Aeroportos
149
FIGURA 1.04 - Curvas de projeto de pavimentos flexíveis para áreas críticas –
Trem de pouso Duplo Tandem
Aula 01 - Aeroportos
Apostila de Aeroportos
150
FIGURA 1.05 - Curvas do projeto de pavimentos flexíveis para áreas críticas –
B747-100, SR, 200 B, C, F
Aula 01 - Aeroportos
Apostila de Aeroportos
151
FIGURA 1.06 - Curvas de projeto de pavimentos flexíveis para áreas críticas –
L-1011-100, 200
Aula 01 - Aeroportos
Apostila de Aeroportos
152
1.9.Pavimentos para Aeronaves Leves
• Generalidades:
a) Os pavimentos para aeronaves leves podem ser definidos como instalações de
pouso que visam acomodar aeronaves particulares ou outras menores que estejam
engajadas em atividade não programadas como, por exemplo, na agricultura ou em
voos de instrução. Esses pavimentos não serão utilizados por aeronaves que
excedam o peso bruto de 30000 libras (13000Kg) e, em muitos casos, essas
aeronaves não excederão sequer as 12500 libras (5700Kg).
b) Alguns aeroportos podem não precisar de áreas operacionais pavimentadas. As
condições do terreno podem ser aceitáveis para o desenvolvimento de uma
superfície gramada adequada para as operações das aeronaves leves. É possível
construir uma pista de solo estabilizado gramado, melhorando a estabilidade do
solo com a adição de agregado antes do desenvolvimento do gramado.
c) Na maioria das áreas, entretanto, não é possível obter e manter uma superfície
gramada estável, devido às condições adversas do tempo ou alta densidade do
tráfego.
d) Os pavimentos projetados para servir aeronaves de menos de 30.000 libras
(13.000Kg) de peso bruto, podem ser do tipo flexível ou rígido.
Aula 01 - Aeroportos
Apostila de Aeroportos
153
FIGURA 1.07 – Seções típicas de pavimentos para aeronaves leves
LARGURAS DAS PISTAS DE DECOLAGEM E DE TÁXI,
DE ACORDO COM AS CIRCULARES APROPRIADAS;
DECLIVIDADES TRANSVERSAIS, DE ACORDO COM
AS CIRCULARES APROPRIADAS;
REVESTIMENTO, BASE, PCC, etc., COMO
NECESSÁRIO;
MÍNIMO 12" (30 cm) [ Para PCC é permissível até 30"
(76 cm)].
1
2
3
4
Aula 01 - Aeroportos
Apostila de Aeroportos
154
FIGURA 1.08
Aula 01 - Aeroportos
Apostila de Aeroportos
155
1.10. Dimensionamento dos Pavimentos Rígidos
• Composição do pavimento:
PLACA DE CONC. CIMENTO
SUB BASE
SUB LEITO
• Sub-base: Fornecer um suporte uniforme e estável para as placas, se exigida,
deve ter espessura ≥ 10 cm, e > 10 cm somente com finalidade de aumentar K
(módulo de reação do subleito).
• Determinação do módulo de reação da fundação (K):
K do material diretamente abaixo da placa. Calcular K para subleito e depois corrigir
para sub-base. Fig. 2.5, fig. 3.13.
o Maneiras de determinação:
a) Pelo carregamento do solo por uma placa padrão
b) Comparação com outro solo com as mesmas características
c) Carregando-se diretamente um pavimento que foi construído em base semelhante
ao estudo
d) Pelo ISC (CBR)
K
ISC
Aula 01 - Aeroportos
Apostila de Aeroportos
156
FIGURA 1.09
Aula 01 - Aeroportos
Apostila de Aeroportos
157
FIGURA 1.10
Aula 01 - Aeroportos
Apostila de Aeroportos
158
1.11. Dimensionamento dos Pavimentos Rígidos
• Determinação da aeronave tipo ou de projeto
• Carga
• Decolagens equivalente para aeronave tipo
• Dados para dimensionamento:
a) Resistência à tração na flexão do concreto
b) Coeficiente de recalque do subleito (K)
c) Peso total da aeronave
d) Decolagens anuais da aeronave tipo
• Correção da espessura para número de decolagens anuais superiores a 25.000
50000 4%
100000 8%
150000 10%
200000 12%
DECOLAGENS ANUAIS
ACRÉSCIMO DA
ESPESSURA PARA 25000
DECOLAGENS
• Áreas do pavimento:
o Críticas (espessura = T)
o Não críticas (espessura = 0,9T)
Exemplos de aplicações
1. Dimensionar o pavimento rígido para um aeroporto, sabendo-se que a resistência à
tração na flexão do concreto a ser utilizado é de 650psi, o subleito tem um
coeficiente de recalque K = 300pci, e que a aeronave tipo tem peso total de 60000lb,
com previsão para 6000 decolagens anuais, sendo o seu trem de pouso de roda
simples.
Solução:
ϭtf = 650psi
K = 300pci
Pt = 60.000lb (roda simples)
Aula 01 - Aeroportos
Apostila de Aeroportos
159
Nd = 6.000
FIGURA 1.11
Entretanto no gráfico das curvas de projeto para pavimento rígido, roda simples,
obtemos o valor da espessura da placa:
h = 9,5”’ h ≅ 24cm
Áreas críticas h1 = T h1 = 24cm
Áreas não críticas h2 = 0,9T h2 ≅ 22cm
Obs.: Acrescentar a diferença (2 cm) no
subleito.
Aula 01 - Aeroportos
Apostila de Aeroportos
160
2. Dimensionar o pavimento rígido para um aeroporto, sabendo-se que a aeronave
tipo tem trem de rodas duplas, seu peso de decolagem é de 180.000lb, e a
previsão é de 15.000 decolagens anuais. O subleito tem um coeficiente de recalque
igual a 100pci e a placa será colocada sobre uma sub-base estabilizada com 8” (20
cm) de espessura. O concreto será dosado para atingir a tração na flexão igual a
700psi.
Solução:
Pt = 180.000 lb (rodas duplas)
Nd = 15.000
Ksub-leito = 100pci
Csub-base = 8’’ (20 cm)
ϭtf = 700psi
a) Vamos inicialmente calcular o valor de melhoria introduzida com a colocação da
sub-base, ou seja, o acréscimo de K (K’).
No gráfico com e = 8’’ e Ksub-leito = 100pci, obtemos para K, K’ = 250pci
FIGURA 1.12 – Efeito da sub-base no módulo de reação do subleito.
PLACA DE
CONCRETO
SUB-BASE
SUB-LEITO
h=?
8"
Aula 01 - Aeroportos
Apostila de Aeroportos
161
Base do gráfico: uma camada estabilizada é duas vezes mais eficiente do que um
agregado britado bem graduado.
FIGURA 1.13
Entrando no gráfico com os valores:
ϭtf = 700psi
Pt = 180.000 lb Obtemos h = 16”” h = 40cm
K = 250pci
Nd = 15.000
Área crítica h1 = 40 cm Área não crítica h2 = 0,9T = 36,0 cm
Obs.: Acrescentar diferença na sub-base.
PLACA
SUB-BASE
40
20
PLACA
SUB-BASE
36
24
Aula 01 - Aeroportos
Apostila de Aeroportos
162
Para o projeto do pavimento rígido será necessário definir o tamanho das placas através
da definição do espaçamento das juntas longitudinais e transversais, conforme tabela a
seguir.
1.12. Tamanho de Juntas de Placas sem Sub-Base Estabilizada
Parte I – sem Sub-base Estabilizada
Espessura da Placa Espaçamento das Juntas (1)
Polegadas Milímetros Pés Metros
6 152 12.5 3.8
6.5 - 9 165 - 229 15 4.6
> 9 > 229 20 6.1
1.13. Tamanho de Juntas de Placas com Sub-Base Estabilizada
Parte I – com Sub-base Estabilizada
Espessura da Placa Espaçamento das Juntas (1)
Polegadas Milímetros Pés Metros
8 - 10 203 -254 12.5 3.8
10.5 - 13 267 - 330 15 4.6
13.5 - 16 343 - 406 17.5 (2) 5.3 (2)
> 16 > 406 20 6.1
(1) Transversal e Longitudinal.
(2) Para as geometrias típicas de Pistas P/D e Táxi a junta longitudinal correspondente é
18.75 pés (5.7m).
As juntas poderão ser de construção, contração e isolamento.
A seguir são apresentados os detalhes destes diversos tipos de juntas que compõem
um pavimento rígido.
Aula 01 - Aeroportos
Apostila de Aeroportos
163
FIGURA 1.14 - Tipos De Juntas E Detalhes Em Pavimento Rígidos
Exercício de Dimensionamento de Pavimento Flexível
Aeronave de projeto
Trem de pouso: duplo tandem
Peso bruto da aeronave: 150.000
Nº de movimento anuais: 30.000 => NDA = 30.000/2 = 15.000
ISC ou CBR subleito: 5%
ISC ou CBR sub-base: 20%
Ábaco figura 3-4 pág. 37 e tabela 3
Apostila de Aeroportos
Exercício de Dimensionamento de Pavimento Flexível
Trem de pouso: duplo tandem
Peso bruto da aeronave: 150.000 libras
Nº de movimento anuais: 30.000 => NDA = 30.000/2 = 15.000
base: 20%
4 pág. 37 e tabela 3-4 pág.
Aula 01 - Aeroportos
164
Aula 02 - Aeroportos
Apostila de Aeroportos
165
AULA 02
1. Drenagem em Aeroportos
1.1. As Áreas dos Aeroportos
• Terrenos muito planos – pouca declividade;
• Projeto adequado – perfil longitudinal e transversal.
1.2. Funções da Drenagem
• Coletar e remover as águas de escoamento das pistas p/d, táxis, pátios e outras
áreas; (permitir a operação das aeronaves)
• Remover a água subterrânea abaixo do pavimento. (não causar danos à sua
estrutura).
1.3. Estimativa da Água de Escoamento das Chuvas
• O total de água que escoa e é captado pelo sistema de drenagem, depende de:
o Extensão da área de contribuição;
o Características da chuva de projeto; (intensidade, duração e recorrência)
o Características da bacia de contribuição. (declividade e impermeabilidade da
área).
1.4. Método Racional
• Usado para calcular o escoamento da água de chuva;
• Criado em 1905 por D. E. Lloyd-Davis – Inglaterra;
• Adaptado pela FAA para drenagem de aeroportos;
• Simples e fácil programar em computador.
1.5. Operação do Método
• Calcula-se cada ponto de capitação isolado;
• Inicia-se pelo ponto mais afastado; (rede de dutos do sistema de drenagem)
• Pressupostos:
o Chuva de projeto – intensidade uniforme (I);
o Duração igual tempo de concentração (Tc);
o Área de contribuição igual área acumulada.
Aula 02 - Aeroportos
Apostila de Aeroportos
166
FIGURA 2.01 - Esquema de Escoamento Da Água da Chuva
1.6. Fórmulas Utilizadas
• Capacidade:
Q = 1/360 x C I A
Onde: Q – vazão (m³/s);
C – coeficiente de escoamento (runoff);
I – intensidade da chuva (mm/hora)
A – área de contribuição (hectares).
Aula 02 - Aeroportos
Apostila de Aeroportos
167
Onde: I -> Tc sendo: Tc = ti + tf
Tf = Ld/Vf e Vf = Q/A
• Equação de Manning:
Q = 1/ x A R2/3
S1/2
e R = A/P
Onde: Q – vazão (m³/s)
A – área molhada (m²)
R – raio hidráulico (m)
S – declividade do leito (%)
P – perímetro da área molhada (m)
η - coeficiente de rugosidade
• Equação da continuidade:
Q = A V
Onde: Q – vazão (m³/s)
A – área molhada (m²)
V – velocidade de escoamento (m/s)
Aula 02 - Aeroportos
Apostila de Aeroportos
168
FIGURA 2.02 - Surface Flow Time Curves
Aula 02 - Aeroportos
Apostila de Aeroportos
169
FIGURA 2.03 – Rainfall Intensity Curves
Aula 02 - Aeroportos
Apostila de Aeroportos
170
1.7. Exercícios de Drenagem – Método Racional
• Exercício 01:
Dada uma área de contribuição A = 10 ha, o coeficiente de escoamento ou Runoff para
a área mencionada C = 0,9 e a intensidade de precipitação de chuva de projeto igual a
180 mm/h, calcule a vazão de escoamento Q.
CIA , onde C – coeficiente de Runoff;
I – mm/h
A – ha (hectares)
x (0,9) x 180 x 10 = 4,5 m³/s
• Exercício 02:
Uma área de contribuição possui área pavimentada igual a 10 há e gramada de 2 há.
Calcule a área efetiva de contribuição.
Apav = 10 ha e Agram = 2 há
Assumindo: Cpav = 0,9 e Cgram = 0,3
Onde: Apav = área pavimentada
Agram = área gramada
Cpav = contribuição da área pavimentada
Cgram = contribuição da área gramada
A área de Contribuição Efetiva será igual ∑ CA = Cpav x Apav + Cgram x Agram
0,9 X
(10) + 0,3 X (2) = 9,6 há
Área
total de contribuição – At
At = 10 + 2 = 12 ha
Coeficiente de Escoamento Efetivo – Cef = ∑ CA = 9,6 = 0,8
At 12
Aula 02 - Aeroportos
Apostila de Aeroportos
171
• Exercício 03:
Dado o tempo de escoamento para a água entrar no Bueiro (B) igual a 15 min (ti) e
um tempo de escoamento na tubulação até o ponto (A) igual a 2 min (tf). Encontre o
tempo de concentração para o dimensionamento da tubulação na seção A.
Tc = 15 + 2 = 17 min
• Exercício 04:
Dado que a declividade de uma área gramada é igual a 2,5% e a área pavimentada
á igual a 0,75%. Sendo as distâncias máximas no escoamento para as respectivas
áreas são iguais a 160m e 90 m. Calcule o tempo de escoamento até a entrada no
bueiro B.
Do gráfico 1, obtêm-se:
ti gramado = 27 min
ti pavimentado = 7,5 min
tiB = 27 + 7,5 = 34,5 min
• Exercício 05:
Uma área de contribuição possui as seguintes características apresentada abaixo:
(a) Ap = 500 x 200 = 10 ha
D = 0,75% e C = 0,9
(b) Ag1 = 500 x 20 = 1 ha
D = 2,5% e C = 0,3
(c) Ag2 = 500 x 80 = 4 ha
D = 1,5% e C = 0,3
Tc = ti + tf
Aula 02 - Aeroportos
Apostila de Aeroportos
172
Do ábaco da figura 2, têm-se:
(a) tip = 11 min
(b) tig1 = 9 min
Tc = 11 + 9 = 20 min
(c) tig2 = 21 min
Apesar da distância (a+b) ser maior do que (c), o tempo de escoamento em (c) até a
valeta de drenagem se tornou maior, isto é, igual a 21 minutos. Portanto este valor
deverá ser considerado como o tempo de concentração da área de contribuição.
Tc=21min.
• Exercício 06 (continuação do Exercício 05):
Dimensionar a seção da valeta de drenagem superficial e sua declividade para um
Tempo de Recorrência – TR = 50 anos.
Tc = ti + tf , onde ti = 21 min e
Tf = L L – Distância e m
V V – Velocidade de escoamento em m/s
Se a valeta de drenagem não for revestida de concreto, a sua velocidade máxima
poderá ser igual a 1,5 m/s. Adotando-se V = 1,5 m/s, então tf = 500/1,5 = 333
segundos, ou seja, igual a 5,5 min. ou 5 min.
O tempo de concentração será: Tc = 21 + 5 = 26 min
Para se obter a intensidade de precipitação de chuva (I), entra-se no ábaco da
figura 2 e encontra-se o valor de I igual a 185 mm/h para um Tempo de Recorrência de
50 anos.
A vazão na seção do ponto A será igual a:
Q = ___1___ I x ∑ CA
360
Q = ___1___ 185 X (10,5) = 5,4 m³/s
360
Pela equação da continuidade, Q = V x A, logo A = Q / V, isto é,
A = 5,4 / 1,5 = 3,6 m²
A = B x D, se for adotado B = 2,5m, então D = 1,44m
Da equação de Manning, V = __1__ R2/3
S1/2
η
Aula 02 - Aeroportos
Apostila de Aeroportos
173
onde: V – Velocidade em m/s
R – Raio Hidráulico – m
S – Declividade – m/m
Sabe-se que R = Am/Pm, em que Am = Área Molhada e P = Perímetro da Área
molhada. Calculando-se R = 3,6 / (2x1,44 + 2,5) = 3,6 / 5,38 = 0,67 m. Entrando-se
com os respectivos valores na fórmula de Manning, obtem-se o valor da declividade –
S. Adotar o valor de η igual a 0,027.
1,5 = __1__ (0,67)2/3
S1/2
0,027
S1/2
= 0,052894
Logo, S = 0,0027978 ou seja 0,28% = 0,3% (Adotar 0,5% que o valor mínimo
aconselhável )
• Exercício 07:
Considere a seguinte bacia de contribuição, composta das áreas 1, 2 e 3 e seus
respectivos tempos de escoamento (tij) e fluxo (tfj). Definir o tempo de concentração
para o ponto A.
Tc1 = ti1 + tf1 = 10 + 3 = 13 min
Tc2 = ti2 + tf2 = 8 + 4 = 12 min
Tc3 = ti3 + tf3 = 14 + 0 = 14 min (máximo Tc), logo o tempo de concentração da
bacia será:
Tc = 14 min
A intensidade de precipitação de chuva pode ser obtida do ábaco da figura 2, isto é,
para um Tempo de Recorrência - TR de 10 anos, o valor de I = 175 mm/h.
A
Aula 02 - Aeroportos
Apostila de Aeroportos
174
FIGURA 2.04 - Exemplo De Projeto de Drenagem
Aula 02 - Aeroportos
Apostila de Aeroportos
175
FIGURA 2.05 - Determination of Tc
__________ _ _______________________________________________ Aula 02 – Aeroportos_
Apostila de Aeroportos
176
Planilha de Cálculo de Rede de Drenagem em Aeroportos – Método Racional
TEMPO DE RECORRÊNCIA - TR = 5 anos
VELOCIDADE MÉDIA NOS DRENOS = 0,75 m/s
VM Adot = 1,00 m/s
η = 0,015
Bueiro
Trecho
Dreno
Compr.
Dreno
(m)
TC
Bueiro
(min)
TE Dreno
(min)
TC Bacia
(min)
I
(mm/hr)
Área de Contribuição
CA
(ha)
Σ CA
(ha)
Q
(m³/s)
* Seção
Dreno
D (cm)
Decliv.
%
Área
Molhada
(m²)
Velocid.
(m/s)
Paviment. Gramada
12 12-11 155 52 3,4 52 88 1,737 1,203 2,94 2,94 0,72 110 0,32 0,96
11 11-10 259 53 5,8 55,4 84 1,998 1,122 3,12 6,06 1,41 155 0,25 1,89
10 10-9 167,2 39 3,7 61,2 78 0,369 1,329 1,698 7,758 1,68 169 0,23 2,24
13 13-9 221,9 62 4,9 62 76 0,72 2,370 3,09 10,848 2,29 197 0,21 3,05
9 9-10 348,1 42 7,7 66,9 74 0,531 1,770 2,301 13,149 2,7 214 0,20 3,60
*Bueiro circular.
__________ _ Aula 03 – Aeroportos_
Apostila de Aeroportos
177
AULA 03
1. Sinalização Horizontal de Pista
1.1. Tipos de Sinalização
1.2. Pista de Pouso e Decolagem
• Pista de pouso e decolagem: pintura cor branca. Em pavimento de cor clara a
pintura terá uma moldura na cor preta.
• Pista de táxi: pintura cor amarela.
• Posições de pátio de aeronaves: pintura cor amarela.
Tipo de Operação da
Pista
Elementos da Sinalização
VFR
Eixo de pista
Designação de pista
Faixas de cabeceira
Ponto de espera
IFR - Não Precisão
Eixo de pista
Designação de pista
Faixas de cabeceira
Ponto de visada
Ponto de espera
IFR - Precisão
Eixo de pista
Designação de pista
Faixas de cabeceira
Ponto de visada
Marca de zona de contato
Faixa lateral
Ponto de espera
__________ _ Aula 03 – Aeroportos_
Apostila de Aeroportos
178
FIGURA 3.01 - Influência das Condições Meteorológicas
__________ _ Aula 03 – Aeroportos_
Apostila de Aeroportos
179
Av=166°25’42”
Am=182°25’42”
FIGURA 3.02 - Exemplo de Identificação de Pista
DM
N mag. N verd.
Av = 166°25'42''
DM = 16°W
Am = 182°25'42''
30.00
12.00
9.00
6.00
6.00
9.00
12.00
F
I
Az
__________ _ Aula 03 – Aeroportos_
Apostila de Aeroportos
180
9.0
1.5
0.3
0.8
2.4
0.5
2.64.0
1.51.5
3.0
3.65.4
1.4
1.5
3.0
1.11.1
1.5
2.72.93.4
3.9
1.5
1.5
2.71.54.8
3.0
1.5
0.8
3.8
5.6
9.0
0.8
1.5
3.0
3.85.2
3.0
1.51.5
1.51.5
3.0
2.14.82.1
NOTA: UNIDADESEMMETROS
FIGURA 3.03 - Formas e Proporções dos Números e Letras de Identificação de
Pista de Pouso
2.02.05.5
3.0
1.51.5
0.8
9.5
9.0
3.5
0.3
5.13.9
1.51.11.5
3.0
4.01.52.02.0
3.0
0.8
1.5
6.0
9.5
3.02.2
0.8
9.0
1.5
__________ _ Aula 03 – Aeroportos_
Apostila de Aeroportos
181
FAIXA DE CABECEIRA:
Largura da pista Número de faixas
18 m 4
23 m 6
30 m 8
45 m 12
60 m 16
A) Eixo: Toda pista pavimentada deve ter sinalização de eixo, que é uma linha de
traços uniformemente espaçados, sobre o eixo longitudinal da pista, localizados
entre as duas sinalizações designadoras de pista, como figuras 3.04 e 3.05. O
comprimento de cada traço mais o intervalo deve estar compreendido entre 50m e
75m. O comprimento de cada traço deve ser de no mínimo 30m ou pelo menos
igual ao comprimento do intervalo, escolhendo-se o que for maior. Sua largura
depende do tipo de operação do aeródromo:
• 90cm em pista para aproximação de precisão CAT II ou CAT III;
• 45cm em pistas para aproximação de precisão CAT I ou em pistas para
aproximações que não sejam de precisão, cujo código de pista seja 3 ou 4;
• 30cm nos demais casos.
__________ _ Aula 03 – Aeroportos_
Apostila de Aeroportos
182
6.00 30.00 12.00 9.00 12.00 30.00
60.00
2.80
.
4.00
30.00 12.00 9.00 12.00
0.90
0.50
1.70
6.00
31.00
3.400.90
69.00
FIGURA 3.04
6.00 30.00 12.00 9.00
6.00
9.00 12.00
1.20
0.9018.703.4018.700.90
R30.00
0.90
0.90
0.90
0.90
06FAIXASDE1.70EOSINTERVALOSDE1.70
__________ _ Aula 03 – Aeroportos_
Apostila de Aeroportos
183
FIGURA 3.05
6,00
30,0020,00
h=10,00
20,0020,00
10,00
20,00
1,80
30,0020,00
1,80
h/3
10,00
h/12 h/3
A - CABECEIRA DESLOCADA TEMPORARIAMENTE B- CABECEIRA DESLOCADA TEMPORARIA OU
PERMANENTEMENTE
__________ _ Aula 03 – Aeroportos_
Apostila de Aeroportos
184
B) Ponto de Visada: é utilizada em ambos os extremos das pistas pavimentadas de
vôo por instrumento, cujo código de pista seja 2, 3 ou 4. Consiste de duas faixas
retangulares, uma de cada lado do eixo longitudinal da pista e, a distância entre
seus lados internos e suas dimensões é variável, conforme tabela e figura 3.05.
Havendo sinalização de zona de contato, a separação lateral entre estes dois tipos
de sinalização deve ser a mesma.
D < 800 800 ≤ D 1.200 1.200 ≤ D < 2.400 2.400 ≤ D
Distância da
cabeceira ao início
da faixa
150m 250m 300m 400m
Comprimento da
faixa
30-45m 30-45m 45-60m 45-60m
Largura da faixa 4m 6m 6-10m 6-10m
Espaço lateral
entre os lados
internos das faixas
6m 9m 18-22,5m 18-22,5m
PONTO DE VISADA
LOCALIZAÇÃO E DIMENSÕES
Localização e
dimensões
Distância disponível para aterrissagem (D) em metros
__________ _ Aula 03 – Aeroportos_
Apostila de Aeroportos
185
FIGURA 3.06
__________ _ Aula 03 – Aeroportos_
Apostila de Aeroportos
186
FIGURA 3.07
__________ _ Aula 03 – Aeroportos_
Apostila de Aeroportos
187
FIGURA 3.08
C) Zona de Contato: É utilizada em ambos os extremos das pistas para aproximação
de precisão cujo código de pista seja 2, 3 ou 4. Consiste de pares de faixas
retangulares, a cada lado do eixo longitudinal, existindo uma configuração básica e
outra com codificação de distância, conforme figura 3.0.6. Na configuração básica o
comprimento mínimo é de 22,5m e a largura mínima de 1,8m, com separação
entre faixas adjacentes de 1,5m. O espaçamento lateral entre os lados internos dos
retângulos deve ser o mesmo utilizado para a sinalização de ponto de visada. Os
pares de faixas serão dispostos com intervalos longitudinais de 150m a partir da
cabeceira, exceto quando estes pares coincidirem com a sinalização de ponto de
visada ou estiverem situados a menos de 50m desta. A quantidade de pares
utilizada será função do comprimento real da pista de pouso, conforme tabela.
150.00
45.00
6.00
0.90
6.00
R44.60
R23.00
0.45
9.009.00
6.00
0.90
60.00
AMARELA
AMARELA
BRANCA
__________ _ Aula 03 – Aeroportos_
Apostila de Aeroportos
188
D) Borda: É utilizada em todas as pistas de aproximação de precisão e nas
pavimentadas, onde não houver contraste entre as bordas da pista e o terreno ou
pavimento adjacente. Consiste de duas faixas, disposatas uma de cada lado do eixo
de pista, ao longo de suas bordas, exceto no caso das pistas com mais de 60m de
largura quando as bordas externas das faixas devem coincidir com a distância de
30m em ralação ao eixo da pista. A largura das faixas será de 0,90m, no mínimo,
para as pistas com 30m de largura ou mais e, de 0,45m para as pistas com largura
inferior a 30m conforme figuras 3.06 e 3.07.
Na intersecção de duas ou mais pistas, deve ser conservada a sinalização
horizontal da pista mais importante, interrompendo-se das demais. A sinalização de
borda da pista de pouso mais importante pode ser mantida ou interrompida. A ordem
de importância das pistas para efieto de conservação de sinalização horizontal é a
seguinte:
1) Pista de aproximação de precisão (CAT I, CAT II ou CAT III);
2) Pista de aproximação que não seja de precisão;
3) Pista de pouso visual;
4) Pista de rolamento.
1.3. Tipos de Sinalização de Pista de Rolamento ou Táxi
A) Eixo: Deve ser utilizada em toda pista de rolamento pavimentada. Consiste de um
traço contínuo com 0,15m de largura, no mínimo, o qual só é interrompido ao
encontrar a sinalização de ponto de espera. Nas curvas conserva, em relação à
borda externa, a mesma distância que tinha parte retilínea, em relação às bordas.
Nas interseções com as pistas de pouso, o eixo deverá formar uma curva para unir-
se com o eixo da pista, prolongando-se paralelamente, por 60m (se o código de
pista for 3 ou 4) ou por 30m (se o código de pista for 1 ou 2), além do ponto de
tangência, mantendo uma separação, entre os centros das faixas, de 0,90m,
conforme figura 3.07 e 3.08.
Comprimento real da pista Pares de faixas
menos de 900m 1
900 a 1200m (exclusive) 2
1200 a 1500m (exclusive) 3
1500 a 2400m (exclusive) 4
2400m ou mais 6
SINALIZAÇÃO DE ZONA DE CONTATO
__________ _ Aula 03 – Aeroportos_
Apostila de Aeroportos
189
B) Borda: Deve ser utilizada nas pistas de rolamento pavimentadas, quando seu
acostamento apresentar o mesmo aspecto e não possuir, no entanto, a mesma
capacidade de suporte da pista de rolamento. Consiste de duas faixas duplas,
dispostas uma de cada lado do eixo de pista, ao longo de suas bordas. A faixa dupla
é composta por dois traços contínuos paralelos, cada uma com 0,15m de largura,
com 0,15m de distância entre suas bordas internas. O limite lateral externo das
faixas deve coincidir com a borda da pista de rolamento, como indica a figura 3.04 e
3.07. Com a finalidade de evitar confusão com o eixo de pista de rolamento, são
utilizadas faixas transversais, no início e no final das curvas e nos pontos
intermediários dos trechos retos. Estas faixas devem ter 0,90m de largura e seu
comprimento deve ser 7,5m ou a largura do acostamento menos 1,5m, utilizando-se
a que for menor, e os intervalos, em cada ponto de tangência, não deve exceder
15m e em pequenos trechos retos, tais intervalos não devem exceder 30m.
C) Ponto de Espera: É utilizada sempre que houver a intersecção de uma pista de
rolamento pavimentada com uma pista de pouso. Sua distância em relação ao eixo
da pista de pouso varia de acordo com a classificação do aeródromo, conforme
indicado na tabela seguinte e figura 3.08.
1 2 3 4
30m 40m 75m 75m
40m 40m 75m 75m
30m 40m 75m 75mDecolagem
60m
- - 90m
60m 90m
Aproximação visual
Aproximação de não precisão
DISTÂNCIA MÍNIMAS ENTRE O EIXO DA PISTA DE POUSO E UM PONTO
DE ESPERA
Aproximação de precisão
Categoria I
Aproximação de precisão
Categoria I e II
90m
90m
Tipo de aproximação
Código de Pista
__________ _ Aula 03 – Aeroportos_
Apostila de Aeroportos
190
FIGURA 3.09 - Ponto de Espera
__________ _ Aula 03 – Aeroportos_
Apostila de Aeroportos
191
FIGURA 3.10 - Sinalização Luminosa – Detalhes
__________ _ Aula 03 – Aeroportos_
Apostila de Aeroportos
192
1.4. Exercício – Sinalização Horizontal de Pista P/D
Elaborar o cálculo da pintura de eixo de pista correspondente ao projeto de sinalização
horizontal de um aeroporto operação Cat.I, e cuja pista de pouso e decolagem possui
1.800 metros de comprimento e 30 metros de largura.
1) Definição da largura da faixa de pista = 90cm (Cat.II e Cat.III)
= 45cm (Cat.I e N- Precisão código 3 e 4)
= 30cm (demais casos)
2) Cálculo do comprimento das faixas de eixo de pista.
PE – espaço para pintura das faixas de eixo de pista
l – comprimento da faixa
e – espaço entre faixas
PE = C – 2 x 69, onde PE = n (l+e) + l, ou seja, PE – l = n (l+e)
Restrições:
l ≥ e ; 50m ≤ (l+e) ≤ 75m; l ≥ 30m
C = 1800m – código 3 , operação instrumento Cat. I, logo a largura será = 45cm.
PE = 1800 – 168 = 1662m
1ª hipótese: l = 30m, e = 20m, onde o conjunto (l+e) = 50m
(1622 – 30) = n (30+20) = 32,64 como n não é inteiro, tomo a parte fracionária e
multiplico pelo conjunto (l + e), ou seja, 0,64 x 50 = 32 m de diferença (faltando).
Neste caso, em que l > e, posso acrescentar esta diferença nos espaços. Assim,
acrescento 32m/32= 1m e o novo espaço será = 21m.
Projeto final: l = 30m
e = 21m
n = 32 conjuntos (l+e), além da faixa no final
69.00 12.00
9.00
12.00 30.00 6.00
lel
__________ _ Aula 03 – Aeroportos_
Apostila de Aeroportos
193
30.00m
LP/2
LP
a
lb
2l
d
e
6.00m
pintura das faixas = (32+1) x 30 = 990m x largura da faixa.
Verificação: PE = n (l + e) + l, isto é, PE = 32 (30+21) + 30 = 1662m
2ª hipótese: l = 37m, e = 37m, onde o conjunto (l+e) = 74m
(1662 – 37) = n (37+37) = 21,95945 como n não é inteiro, tomo a parte fracionária e
multiplico pelo conjunto (l + e), ou seja, 0,95945 x 74 = 71m de diferença (faltando).
Neste caso, em que l = e estando o conjunto (l + e) próximo do valor limite de 75m e
assim a distribuição da diferença nos espaços, ou seja, 71m/21= 3,38m ultrapassará
este limite, Como a parte fracionária é próxima da unidade, a solução será arredondar o
n para 22 conjuntos e a diferença (74 – 71 = 3m) reduzir nos espaços, considerando-se
um número de conjuntos pares para o equilíbrio do projeto de forma simétrica (duas
cabeceiras). Assim, será distribuído 0,5m em seis conjuntos com a redução dos
espaços.
Projeto final: l = 37m
e = 37m, sendo 6 conjuntos com e = 36,5m
n = 22 conjuntos (l+e), além da faixa no final
pintura das faixas = (22+1) x 37 = 851m x largura da faixa.
Verificação: PE = n (l + e) + l, isto é, PE = 16 (37+37) + 6 (37+36,5) + 37 = 1662m
Observação: a 2ª hipótese resultará em uma menor área de pintura.
Elaborar o projeto das faixas de cabeceira de uma pista P/D conforme dados a seguir:
Largura da pista Número de faixas
23m 6
30m 8
45m 12
Nf/2 x (a+e) + d = LP/2, d ≤ 3,00m
a = e, a= 1,80m a 1,60m (centro = 2e)
LP < 30 lb = 0,45m e LP ≥ 30 lb = 0,90m
__________ _ Aula 03 – Aeroportos_
Apostila de Aeroportos
194
1) Largura da pista = 30metros e largura da pintura de borda = 0,90metros.
8/2 x (1,8+1,8) + d = 30/2, assim d = 0,60m, onde lb= 0,90 > d=0,60 reduzir
espessura da faixa e espaços de 1,80m para 1,70.
8/2 x (1,7+1,7) + d = 30/2, assim d = 1,40m, onde lb= 0,90 < d=1,40 (Ok, isto
resultará em 0,50m entre a faixa e a pintura de borda).
2) Largura da pista = 45metros e largura da pintura de borda = 0,90metros.
12/2 x (1,8+1,8) + d = 45/2, assim d = 0,90m, onde lb= 0,90 = d reduzir espessura
da faixa e espaços de 1,80m para 1,70.
12/2 x (1,7+1,7) + d = 45/2, assim d = 2,10m, onde lb= 0,90 < d=2,10 (Ok, isto
resultará em 1,20m entre a faixa e a pintura de borda).
3) Largura da pista = 23metros e largura da pintura de borda = 0,45metros.
6/2 x (1,8+1,8) + d = 23/2, assim d = 0,70m, onde lb= 0,45 < d=0,70 (Ok, isto
resultará em 0,25m entre a faixa e a pintura de borda).
__________ _ Aula 04 – Aeroportos_
Apostila de Aeroportos
195
AULA 04
1. Acessos Terrestres e Estacionamentos
1.1. Parâmetros para o Dimensionamento dos Estacionamentos
de Automóveis em Aeroportos Brasileiros
Lenise Grando Goldner – PPGEC / UFSC
Nilton Goldner – AEROPLANOS Ltda
David Esteche Pedrozo- PPGEC/UFSC / UFSC
Este trabalho objetiva analisar os estacionamentos de automóveis nos aeroportos
brasileiros. Para tal realizou-se uma ampla coleta de dados nos aeroportos Hercílio Luz
em Florianópolis e Salgado Filho em Porto Alegre. Pesquisou-se o uso dos diferentes
tipos de estacionamentos disponíveis nos aeroportos, o perfil do usuário do
estacionamento, o tempo de permanência na vaga e as taxas de utilização dos
mesmos. Para uma amostra global de 26 aeroportos administrados pela Infraero
propõe-se um modelo de regressão linear que fornece o número de automóveis que
utilizam o estacionamento por ano, mês e dia de maior movimento em função do
número correspondente de passageiros embarcando e desembarcando no aeroporto.
Todas estas informações propiciam ao planejador de transportes o dimensionamento
adequado do número de vagas de estacionamento para aeroportos brasileiros, em
expansão ou em novos empreendimentos.
Abstract
This paper aims to investigate the Brazilian airports parking lots. To reach this target
were collected raw data from airports Hercílio Luz and Salgado Filho, located in the
cities of Florianópolis and Porto Alegre, respectively. It was researched the use of
different kinds of available parking places in these airports, parking user’s profile,
duration time on parking spaces and the rates of utilization of them. For one sample
composed of 26 airports administered by Infraero, it was proposed one linear
regression model that provides the number of vehicles which use parking spaces per
year, peak month or peak day as function of the number of corresponding passengers
embarking plus disembarking in the airport. These entire information permits transport
planners the adequate dimensioning of the number of parking spaces for the Brazilian
airports parking lots, in the expansion or construction of new airport.
__________ _ Aula 04 – Aeroportos_
Apostila de Aeroportos
196
1.2. Introdução
Os aeroportos destacam-se como um importante Pólo Gerador de Tráfego existente em
áreas urbanas, que produzem e atraem um grande número de viagens terrestres,
causando problemas na fluidez e segurança do tráfego dos acessos e na área do
entorno, bem como a necessidade de um número significativo de vagas de
estacionamento para automóveis.
Os aeroportos são, de maneira geral, sistemas complexos, dentre outras razões pela
diversidade de seus usuários (passageiros, funcionários de companhias aéreas e da
administração do aeroporto, visitantes, acompanhantes, etc.), pela inter-relação entre
eles e pelos diferentes modos de transportes utilizados pelos mesmos.
Segundo afirmação de Keefer (1966) e Leher & Freeman (1998), que estudaram os
acessos terrestres e os estacionamentos de aeroportos, torna-se difícil generalizar os
modelos e parâmetros obtidos nos estudos, face à já citada complexidade e diversidade
entre os aeroportos e a realidade das cidades no qual estão inseridos.
Ashford e Wright (1984) consideram que uma das maiores dificuldades encontradas
pelo planejador de transportes é determinar a localização e o número de vagas de
estacionamento de veículos de um aeroporto.
No Brasil, Muller et al (1988) citam alguns índices para o dimensionamento dos
estacionamentos: 1,5 a 2,0 vagas por passageiro na hora de pico;1,0 vaga para cada 5
passageiros na hora de pico para o estacionamento de funcionários e 0,4 a 0,8 vagas
por 1000 passageiros anuais para o aeroporto como um todo. Nos Estados Unidos, a
FAA (Federal Aviation Administration) recomenda o oferecimento de 0,5 vagas por 1000
passageiros anuais.
Em relação ao tráfego das vias de acesso e solução para os congestionamentos
existentes Schoenfeld (1979) propôs para o aeroporto Internacional de Los Angeles
duas soluções: o fornecimento de estacionamento periférico à área do aeroporto e o
estímulo à mudança do uso do automóvel para um sistema de vans, para o transporte
deste estacionamento até o aeroporto.
Outros estudos, como do ITE (comitê 6A19,1980), de Mohr e Gosling (1997), de Foote
et al (1997), de Shapiro (1998), e de Lehre (1998), abordaram os problemas de
circulação pelos acessos terrestres aos aeroportos, e maneiras de incrementar o
transporte coletivo (ônibus, vans, trens etc) como alternativa de locomoção até os
aeroportos, procurando minimizar os congestionamentos e diminuir a necessidade de
vagas de estacionamento para veículos nos aeroportos.
__________ _ Aula 04 – Aeroportos_
Apostila de Aeroportos
197
No Brasil, durante o período de 2000 a 2004 realizou-se uma ampla pesquisa sobre as
viagens terrestres aos aeroportos, através do estudo de caso dos Aeroportos Hercílio
Luz em Florianópolis e Salgado Filho em Porto Alegre. Foram levantados dados sobre a
demanda de viagens aéreas e características de cada um destes aeroportos
administrados pela INFRAERO, realizadas entrevistas com os seus usuários para
obtenção do perfil deles e as características das viagens terrestres; além do
levantamento do número de automóveis que utilizaram os estacionamentos, bem como
o número de vagas oferecidas (Goldner, 2002).
Enviou-se, também, um questionário ao superintendente dos demais aeroportos
administrados pela INFRAERO no país, para coleta de dados sobre seus
estacionamentos. Como resposta, obteve-se informações de 24 aeroportos, que
somados aos de Florianópolis e Porto Alegre constituíram uma amostra de 26
aeroportos estudados.
Estudou-se ainda a probabilidade de escolha entre os tipos de estacionamentos
oferecidos em função da tarifa adotada, através da calibração do Modelo Logit e o uso
da técnica de preferência declarada (SP), além do estudo de modelos de escolha dos
meios de transportes terrestres, em função das variáveis tempo de viagem e custo da
viagem, com o uso do modelo Logit Multinomial (Goldner, 2004). Os resultados destes
dois últimos estudos citados não serão objetos de apresentação neste artigo.
O objetivo deste trabalho é, portanto, condensar as informações sobre a demanda dos
estacionamentos de automóveis dos aeroportos brasileiros estudados através da
amostra mencionada, bem como sugerir taxas de utilização e modelos de previsão
deste volume de automóveis como subsídios para o planejamento adequado das vagas
de estacionamento para aeroportos do país.
Para os aeroportos Hercílio Luz e Salgado Filho apresentam-se as distribuições das
viagens terrestres por meio de transporte, o local de estacionamento utilizado pelos
usuários e as taxas de utilização dos estacionamentos para o ano, para o mês de maior
movimento, para o dia de maior movimento e para a hora de pico; relacionando o
número de automóveis com a demanda de passageiros embarcando e desembarcando
para os períodos correspondentes, bem como a distribuição do tempo de permanência
dos automóveis nas vagas.
Numa segunda etapa, agregou-se a estas informações os dados dos demais aeroportos
da amostra apresentando-se um modelo de regressão linear que relaciona o número de
automóveis no estacionamento (anual, mensal e diário) com o número de passageiros
embarcando e desembarcando no período no aeroporto.
__________ _ Aula 04 – Aeroportos_
Apostila de Aeroportos
198
1.3. Composição da Amostra do Estudo
Os aeroportos pesquisados em detalhe, através de questionário para a administração,
entrevistas “in loco” com os usuários e levantamentos de dados sobre a movimentação
de veículos nos estacionamentos foram os aeroportos Salgado Filho e Hercílio Luz,
ambos localizados em capitais no sul do Brasil.
O aeroporto Hercílio Luz em Florianópolis (Fpolis), no estado de Santa Catarina, é
administrado pela INFRAERO e possui um importante papel no cenário brasileiro e do
Mercosul (Mercado Comum entre Argentina, Brasil, Paraguai e Uruguai), principalmente
pela atração turística que a cidade exerce sobre o público brasileiro e argentino.
No ano de 1999 o citado aeroporto movimentou um total de 891.354 passageiros, com
21% do tipo internacional, 60% do tipo doméstico e 19% do tipo regional. O aeroporto
possui um único estacionamento, descoberto, com um total de 450 vagas. Em 2004, o
número de passageiros embarcando e desembarcando foi de 1.382.577, sendo 94 %
em vôos domésticos.
O aeroporto Salgado Filho, localizado na cidade de Porto Alegre (POA), estado do Rio
Grande do Sul, tem um papel importante no cenário nacional, sendo administrado
também pela INFRAERO, e foi destacado em oitavo lugar na classificação dos
aeroportos brasileiros, no que se refere ao tráfego doméstico, segundo dados
analisados por Pereira Filho et al em 1999. No ano de 2004, ocupou o sétimo lugar no
ranking nacional.
No ano de 1999, o aeroporto Salgado Filho apresentou um movimento total de
passageiros de 2.337.614, sendo que destes 8,20% são do tipo internacional, 70%
doméstico e 21,80% regional. Em setembro de 2001, foi inaugurado o novo terminal de
passageiros do aeroporto, com dois tipos de estacionamentos, um descoberto, com 770
vagas e um edifício garagem, com 1440 vagas. Em 2004 o número de passageiros
embarcando e desembarcando neste aeroporto foi de 3.215.546, com 91,8 % em vôos
domésticos.
Os demais aeroportos da rede administrada pela INFRAERO, que são em número de 66,
foram contatados via correio, para o preenchimento de um questionário padrão, sobre a
movimentação de passageiros e de veículos nos estacionamentos. Desta forma, obteve-
se resposta de 26 aeroportos (incluindo o Hercílio Luz e o Salgado Filho). A tabela 1, a
seguir, apresenta a listagem dos aeroportos que compõem a amostra total estudada.
__________ _ Aula 04 – Aeroportos_
Apostila de Aeroportos
199
Tabela 1: Aeroportos que responderam ao questionário enviado
Nº Aeroporto Nº
1 Aeroporto de Ilhéus (BA) 14
2 Aeroporto Intern. Tancredo Neves (MG) 15
3 Aeroporto Regional do Cariri (CE) 16
4 Aeroporto de Uberaba (MG) 17
5 Aeroporto Intern. Augusto Severo (RN) 18
6 Aeroporto de Belo Horizonte (MG) 19
7 Aeroporto Intern. de Brasília (DF) 20
8 Aeroporto Intern. de Boa Vista (RR) 21
9 Aeroporto Intern. Pres.Castro Pinto (PB) 22
10 Aeroporto Intern. do Rio de Janeiro (RJ) 23
11 Aeroporto Intern.de Cruzeiro do Sul (AC) 24
12 Aeroporto de Goiânia (GO) 25
13 Aeroporto de Montes Claros (MG) 26
Aeroporto de Vitória (ES)
Aeroporto Intern. de Ponta Porã (MS)
Aeroporto Bartolomeu Lysandro (RJ)
Aeroporto Hercílio Luz (SC)
Aeroporto Intern. Salgado Filho (RS)
Aeroporto Intern. Guararapes (PE)
Aeroporto Intern. de Congonhas (SP)
Aeroporto Intern .de São Paulo (SP)
Aeroporto de Imperatriz (MA)
Aeroporto
Aeroporto Intern. Pinto Martins (CE)
Aeroporto de Petrolina (PE)
Aeroporto de Macaé (RJ)
Aeroporto Intern. de Corumbá (MS)
1.4. Escolha Modal e Demanda de Autos nos Estacionamentos
dos Aeroportos Hercílio Luz e Salgado Filho
Para as pesquisas mencionadas anteriormente, foram coletadas informações sobre o
perfil do usuário do aeroporto (tipo de usuário, sexo, idade, escolaridade, tipo de vôo,
propósito e freqüência da viagem aérea, profissão), as características das viagens
terrestres (meio de transporte utilizado, tempo de viagem, origem/destino da viagem) e
o uso de estacionamento por automóveis (local, tempo de permanência na vaga).
Foram feitas 400 entrevistas com usuários em cada aeroporto, sendo que, no Aeroporto
Salgado Filho, se realizou nos meses de agosto e setembro de 2000 (meses típicos), e
no Hercílio Luz no mês de janeiro de 2001 (período de pico), devido à sazonalidade em
função do turismo de verão, e em abril de 2001 (período normal), considerado um mês
típico.
Dentre as informações obtidas, a seguir, nos próximos parágrafos são apresentadas
algumas das estatísticas que possuem relação direta com o estudo do estacionamento.
__________ _ Aula 04 – Aeroportos_
Apostila de Aeroportos
200
Da amostra total de usuários entrevistados por aeroporto, obtém-se o percentual por
meio de transporte utilizado, como se observa na tabelas 2 e 3, para os movimentos de
entrada e saída do aeroporto Hercílio Luz (HL) e nas tabelas 4 e 5 para o aeroporto
Salgado Filho (SF).
Tabela 2: Distribuição por meio de transporte das viagens chegando ao aeroporto HL
Meio de
transporte
Origem
Período de pico Período típico
Soma % Soma %
Carro
Fpolis 71 46,41 79 49,07
Interior 24 15,69 12 7,45
Ônibus de linha
Fpolis 10 6,54 14 8,7
Interior 6 3,92 3 1,86
Ônibus fretado
Fpolis 3 1,96 1 0,62
Interior 4 2,61 0 0
Táxi Fpolis/Interior 22 14,38 39 24,22
Van Fpolis 4 2,61 4 2,48
Outro Fpolis/Interior 9 5,88 9 5,59
Total 153 100 161 100
Durante o período de pico, houve predominância das viagens por automóvel,
representando 62,10% do total, seguido por táxi com 14,38%. No período típico, as
viagens por automóvel representaram 56,52% do total, seguidas pelo táxi com
24,22%.
Tabela 3: Distribuição por meio de transporte das viagens saindo do aeroporto HL
Soma % Soma %
Fpolis 15 46,88 12 35,29
Interior 3 9,38 5 14,71
Fpolis 3 9,38 1 2,94
Interior 1 3,13 0 0
Fpolis 1 3,13 0 0
Interior 0 0 0 0
Táxi Fpolis/Interior 4 12,5 10 29,41
Van Fpolis 0 0 3 8,82
Outro Fpolis/Interior 5 15,63 3 8,82
32 100 34 100
Período de pico Período típicoMeio de
transporte
Origem
Carro
Ônibus de linha
Ônibus fretado
Total
__________ _ Aula 04 – Aeroportos_
Apostila de Aeroportos
201
Em relação ao meio de transporte utilizado para sair do aeroporto, durante o período de
pico, houve predominância das viagens por automóvel, representando 56,26% do total,
seguido por táxi com 12,50%. Já no período típico, as viagens por automóvel
representaram 50,00% do total, seguidas por táxi com 29,41%.
Tabela4: Distribuição por meio de transporte das viagens chegando ao aeroporto SF
Meio de transporte Origem Motorista Passageiro Soma %
POA 71 64 135 46,23
Interior 11 17 28 9,59
POA 20 20 6,85
Interior 20 20 6,85
Táxi POA 75 75 25,68
Trem POA 10 10 3,42
POA 3 3 1,03
Interior 1 1 0,34
292 100
Van
Total
Carro
Ônibus
O meio de transporte predominante das pessoas que chegaram ao aeroporto foi o
automóvel com 55,82% do total, seguido pelo táxi com 25,68%.
Tabela 5: Distribuição por meio de transporte das viagens saindo do aeroporto SF
Meio de transporte Origem Motorista Passageiro Soma %
POA 46 54 100 64,94
Interior 4 12 16 10,39
POA 4 4 2,6
Interior 7 7 4,55
Táxi POA 22 22 14,29
Trem POA 3 3 1,95
POA 1 1 0,65
Interior 1 1 0,65
154 100Total
Carro
Ônibus
Van
O meio de transporte predominante das pessoas que saíram do aeroporto foi o
automóvel com 75,32% do total, seguido pelo táxi com 14,29%. Observando-se o total
das tabelas 4 e 5 percebe-se que a soma ultrapassa o valor de 400 pessoas. Isso se
explica pelo fato de que em alguns casos se considerou as viagens chegando e saindo
para uma mesma pessoa, na maioria das vezes os acompanhantes como usuários.
Segmentando-se da amostra total os usuários que utilizaram o automóvel, e
conseqüentemente algum tipo de estacionamento, obtêm-se a distribuição percentual
__________ _ Aula 04 – Aeroportos_
Apostila de Aeroportos
202
por local, o que pode ser observado nas tabelas 6 e 7, para o aeroporto Hercílio Luz e
Salgado Filho, respectivamente.
Tabela 6: Distribuição por local de estacionamento para quem chega ou sai do
aeroporto de automóvel HL
veículos % veículos %
Estacionamento no
Aeroporto
81 51,92 62 37,8
Estacionamento próximo
ao aeroporto
11 7,05 13 7,93
Meio-fio de embarque e
desembarque
63 40,38 88 53,66
Outro 1 0,64 1 0,61
Total 156 100 164 100
Local de
estacionamento
Período de pico Período típico
Em relação ao local de estacionamento dos automóveis no aeroporto, para o fluxo de
embarque ou desembarque de passageiros, no período de pico, houve predominância
do uso do estacionamento do aeroporto representando 51,92% do total, seguido pelo
meio-fio de embarque e desembarque com 40,38%. Já no período típico, a ordem se
inverte 53,66% do total utilizaram o meio fio e 37,80% o estacionamento do aeroporto.
Tabela 7: Distribuição por local de estacionamento para quem chega ou sai do
aeroporto de automóvel SF
Local de estacionamento veículos %
No estacionamento do aeroporto 101 43,35
Fora do aeroporto 8 3,43
No meio - fio de embarque/desembarque 124 53,22
Total 233 100
Das pessoas que chegaram ou saíram de automóvel do aeroporto a maioria usou o
meio-fio de embarque e desembarque, representando 53,22% do total, seguido pelos
que usaram o estacionamento do aeroporto com 43,35%.
Do total de usuários do estacionamento do aeroporto Hercílio Luz, para o
estacionamento de curta duração (até 4 horas) 44,44 % são acompanhantes de
passageiros, seguido por 32,22% de passageiros embarcando ou desembarcando. Para
o estacionamento de longa duração 64,22 % dos usuários são passageiros embarcando
ou desembarcando, seguidos por 22,38% de funcionários do aeroporto. A tripulação
representou 5,24% do total.
__________ _ Aula 04 – Aeroportos_
Apostila de Aeroportos
203
Para o aeroporto Salgado Filho, no estacionamento de curta duração 55% dos usuários
são passageiros embarcando ou desembarcando, seguido por 30,83% de
acompanhantes de passageiros. Para o de longa duração 54,16 % são passageiros
embarcando ou desembarcando, seguido por 19,17 % de funcionários de companhias
aéreas, 12,50% de funcionários do próprio aeroporto e 10,83 % por tripulação.
Do segmento formado pelos usuários do estacionamento do aeroporto, destaca-se a
seguir a distribuição por tempo de permanência na vaga, segundo se observa nas
tabelas 8 e 9.
Tabela 8: Distribuição do tempo de aproximado de estacionamento no aeroporto HL
veículos % veículos %
Até 30 minutos 17 18,28 15 20
De 30 minutos a 1 hora 31 33,33 22 29,33
De 1 a 2 horas 20 21,51 21 28
De 2 a 4 horas 13 13,98 6 8
De 4 a 8 horas 7 7,53 2 2,67
De 8 a 12 horas 0 0 0 0
De 12 a 24 horas 0 0 0 0
Maior que 24 horas 5 5,38 9 12
Total 93 100 75 100
Período de pico Período típico
Tempo estacionado
O estacionamento de curta duração (até 4 horas), tanto no período típico quanto no
período de pico representou aproximadamente 85% do total.
Tabela 9: Distribuição do tempo aproximado de estacionamento no aeroporto SF
Tempo estacionado veículos %
Até 30 minutos 28 25,69
De 30 minutos a 1 hora 31 28,44
De 1 a 2 horas 25 22,94
De 2 a 4 horas 6 5,5
De 4 a 8 horas 1 0,92
De 8 a 12 horas 3 2,75
De 12 a 24 horas 2 1,83
Maior que 24 horas 13 11,93
O tempo aproximado de permanência no estacionamento do aeroporto se encontra na
faixa de até 2 horas com 77,06%, onde se tem uma distribuição quase uniforme. Na
__________ _ Aula 04 – Aeroportos_
Apostila de Aeroportos
204
faixa de tempo maior que 24 horas tem-se um número um menos significativo, com
11,93% do total.
Os cálculos dos tempos médios da amostra podem ser observados nas tabelas 10 e 11,
a seguir. Para o cálculo destes tempos, levou-se em consideração o ponto médio do
intervalo das tabelas 8 e 9, e como pontos extremos 0,25 horas (15 minutos) e 24
horas.
Tabela 10: Tempo médio de permanência por período HL
Valor médio do tempo Período de pico (horas) Período típico (horas)
Média da amostra total 2,78 3,97
Média - Curta duração 1,19 1,09
Média - Longa duração 13,5 20,72
Tabela 11: Tempo médio de permanência por período SF
Valor médio do tempo Período típico (horas)
Média da amostra total 4,31
Média - Curta duração 0,95
Média - Longa duração 20,21
Nota-se que o comportamento dos usuários dos estacionamentos dos períodos típicos
do aeroporto Hercílio Luz e Salgado Filho são bastante próximos, com valores médios
de tempo de permanência na mesma ordem de grandeza, o que não acontece no
período de pico do aeroporto Hercílio Luz.
Com relação aos dados sobre o número de automóveis que utilizaram os
estacionamentos, no ano de 1999 entrou no estacionamento do aeroporto Hercílio Luz
139.399 automóveis. O mês de maior movimento de automóveis foi janeiro, com
21.532 veículos, representando 15,45% do total anual. O dia de maior movimento do
mês de janeiro, também, o dia de maior movimento do ano, foi 10/01/99, um domingo,
com 958 automóveis, representando 4,45% do total mensal. A hora de maior
movimento, do dia de maior movimento, ocorreu entre 13 e 14 horas do mencionado
dia, com 122 automóveis, representando 12,73% do total diário. Este percentual é
denominado genericamente como Percentual de Pico Horário (PPH). O número total de
vagas oferecidas no estacionamento do aeroporto é 450.
Para este mesmo ano, no aeroporto Salgado Filho, entraram 647.946 automóveis no
estacionamento. O mês de maior movimento foi janeiro, com 62.465 automóveis
(9,94% do anual). O dia de maior movimento de janeiro teve um movimento de 2.361
automóveis (3,78% do mensal) e só foi superado uma única vez no ano, no dia
__________ _ Aula 04 – Aeroportos_
Apostila de Aeroportos
205
primeiro de agosto, um domingo, que representou o retorno das férias de julho. O
aeroporto oferecia na ocasião 750 vagas de estacionamento.
1.5. Taxas de Utilização dos Estacionamentos
Com os dados de passageiros embarcando e desembarcando no ano de 1999, no mês
de maior movimento e no dia de maior movimento, associados aos números de
automóveis que entraram no estacionamento nestes períodos, respectivamente, pode-
se elaborar as taxas de utilização destes estacionamentos, as quais são apresentadas
na tabela 12, a seguir.
Tabela 12: Cálculo das taxas de utilização dos estacionamentos HL e SF
Taxas de utilização do estacionamento HL SF
Automóveis no estacionamento por passageiros
embarcando e desembarcando - ano de 1999
0,157 0,28
Automóveis no estacionamento por passageiros
embarcando e desembarcando - janeiro de 1999
0,156 0,29
Automóveis no estacionamento por passageiros
embarcando e desembarcando - dia de maior
movimento de janeiro de 1999
0,133 0,36
Automóveis no estacionamento por passageiros
embarcando e desembarcando - hora de maior
movimento
0,177 dd*
*dd = dado desconhecido
A expectativa é que as taxas devam crescer no sentido de cima para baixo da tabela,
respectivamente, pois à medida que se evolui do volume anual para a hora de pico a
demanda tende a se concentrar, obtendo-se valores mais elevados. Isto, contudo, não
aconteceu no aeroporto Hercílio Luz, cuja taxa para o dia de maior movimento é um
pouco mais baixa. Já para o caso do aeroporto Salgado Filho, acontece o esperado com
relação ao crescimento das taxas de utilização.
Comparativamente, as taxas de utilização do aeroporto Salgado Filho são mais
elevadas, o que representa uma maior concentração de automóveis no estacionamento
por passageiro embarcado ou desembarcado. Infelizmente a taxa horária para este
aeroporto não pôde ser calculada, por falta de dados.
1.6. Modelos de Regressão Linear para os Aeroportos
A partir dos dados obtidos sobre o movimento de passageiros e o movimento de
automóveis estacionados nos aeroportos de toda a amostra, com dados obtidos por
questionário via correio para um total de 26 aeroportos (incluindo-se o Hercílio Luz e o
__________ _ Aula 04 – Aeroportos_
Apostila de Aeroportos
206
Salgado Filho), realizou-se a calibração de modelos de regressão linear simples, tendo
como variável dependente (Y) o número de automóveis no estacionamento (anual,
mensal, diário) e variável independente (X) o número de passageiros embarcando e
desembarcando no aeroporto (anual, mensal, diário). Conforme descrito no trabalho
apresentado por Goldner et al (2004) no XIII Congresso da ANPET, e representada pela
expressão: Y = β1 + β2 X.
Realizou-se uma série de tentativas de modelagem considerando-se os coeficientes da
regressão β1 e β2. Porém, os modelos não se apresentaram estatisticamente confiáveis.
Portanto, considerou-se β1=0, ou seja, a reta passando pela origem. Também, retirou-
se da amostra o aeroporto 23 (Internacional de Congonhas), pois representa um ponto
fora da curva, o quê prejudicava os valores do R2
das equações de regressão. Os
resultados finais da calibração são apresentados na tabela 13, a seguir.
Tabela 13: Modelos de regressão linear simples para os aeroportos da amostra.
Tipo Equação R R2 N.º Teste t t min. (95%)
Modelo Anual Y = 0,196 X 0,889 0,791 13 11,795 1,782
Modelo Mensal Y = 0,232 X 0,885 0,783 11 12,045 1,812
Modelo Diário Y = 0,255 X 0,751 0,565 8 6,227 1,895
Conforme se pode observar na tabela acima, os modelos obtidos para o ano 2000, o
mês e o dia de maior movimento apresentaram coeficientes de correlação de bons a
satisfatório, com a estatística t-student acima do valor mínimo, para o nível de
confiança de 95%. Os coeficientes β2 cresceram conforme o esperado, de anual para
diário. Apenas o modelo para a hora-de-pico não se apresentou estatisticamente
confiável, não sendo recomendada a sua utilização e por isso não foi apresentado o
modelo.
1.7. Conclusões
A pesquisa sobre aeroportos foi desenvolvida entre 2000 e 2004 e segmentada em
diversas partes. As questões ora apresentadas se referem ao estudo do estacionamento
de automóveis, com dados obtidos de levantamentos e entrevistas realizadas no ano
2000, tendo como base o ano de 1999, cujas estatísticas de movimentação de
passageiros estavam completas.
Os dados referentes ao estacionamento de automóveis, as características dos usuários
destes estacionamentos, o uso dos diferentes tipos de estacionamento do aeroporto e
proximidades, o tempo de permanência na vaga e demais informações relevantes foram
__________ _ Aula 04 – Aeroportos_
Apostila de Aeroportos
207
obtidas em detalhes somente para os aeroportos Hercílio Luz e Salgado Filho, por
motivo de proximidade e localização geográfica e, conseqüente, economia de recursos e
mão de obra. Apenas os dados relacionados ao número de passageiros embarcando ou
desembarcando e o número de automóveis nos estacionamentos foi generalizado para
toda a amostra e obtido através de questionário via correio, totalizando 26 aeroportos
estudados.
Como o número de vagas de estacionamento de um aeroporto pode ser dimensionado
multiplicando-se o volume de automóveis diário pela percentagem de pico horário e em
seguida pelo tempo médio de permanência, este trabalho oferece ao planejador de
transportes subsídios para a busca de um dimensionamento adequado de vagas para os
aeroportos brasileiros em expansão, ou a serem construídos.
Devido à dificuldade de obtenção de dados sobre a demanda horária nos
estacionamentos, e do conseqüente conhecimento da percentagem de pico horário, esta
foi uma lacuna deixada em aberto neste trabalho. Sugere-se a insistência junto às
administrações dos estacionamentos dos aeroportos para que a mencionada informação
seja fornecida, pois, ela é conhecida nos estacionamentos controlados eletronicamente.
Considerando-se o fato de que muito pouco se tem pesquisado no Brasil sobre as
viagens terrestres e os estacionamentos de automóveis nos aeroportos do país, e
relevando-se as limitações impostas pela dificuldade de obtenção e coleta de dados,
pode-se considerar que o trabalho ora apresentado representa uma contribuição ao
estudo dos aeroportos brasileiros, e de maneira geral um incremento à área de
transportes.
__________ _ Aula 04 – Aeroportos_
Apostila de Aeroportos
208
1.8. Referências Bibliográficas
ASHFORD, N.and WRIGHT, P.H., Airport engineering, John Willy & Sons, 1984
FABIAN, L.J., Rationalizing Airport Ground Access, Transportation Quarterly, vol.
47, nº 4: 473 – 482,1993
FOOTE, P.J. and LABELLE, S. and STUART, D.G., Increasing Rail Transit Access to
Airports in Chicago, Transportation Research Record 1600: 1-9, 1997.
GOLDNER,L.G, Uma análise dos aeroportos como Pólos Geradores de Tráfego,
relatório final de Pesquisa para o CNPq, 2002
GOLDNER,L.G, Estudo da escolha modal em aeroportos, relatório final de
Pesquisa para o CNPq, 2004.
GOLDNER,L.G e PEDROZO,D.E e GOLDNER,N, Modelos de demanda dos
estacionamentos de automóveis nos aeroportos brasileiros, comunicação técnica,
anais em cd do XVIII Congresso da ANPET, Florianópolis, 2004.
GOLDNER,L.G e ANDRADE,L.G, Uma análise do aeroporto Salgado Filho como um
pólo gerador de tráfego, Revista dos Transportes Públicos, ANTP, ano 26, 2º
trimestre de 2004.
GOSLING, G.D., Airport ground access and Intermodal Interface, Transportation
Research record 1600: 10-17.,1997
HENSHER, D. A. e KING, J., Parking Demand and Responsiveness to supply,
pricing and location in the Sydney Central Business District, Transportation
Research part A 35, 177 – 196, 2001.
HORONJEFF, R.and McKELVEY, F., Planning design of airports, McGrawHill Book
Company, 1986.
ITE (Institute of Transportation Engineering), Data needs for planning airport
access by public transportation, ITE Journal, October,1980.
KEEFER, L.E., Urban travel patterns for airports, shopping centers and industrial
plants, National Cooperative Highway Research Program report 24, 1966
LACOMBE, A., Ground access to airports: prospects for intermodalism,
Transportation Quarterly, vol.48, n.4: 381-392,1994
LEHRER, H.R. and FREEMAN, A., Intermodal airport-to-city-center passenger
transportation at the 20 largest U.S. air carrier airport: the past, present
and future, Journal of Air Transportation World Wide, vol.3 n.1: 12-23,1998
MOHR, E. and GOSLING, G.D., Role of Door-to-Door Vans in Airport Ground
Transportation, Transportation Research Record 1461: 54 – 63, 1997.
MÜLLER, C.e ALVES, C.J.P. e FORTES, C.N.B., Planejamento de aeroportos, apostila
da divisão de infra-estrutura aeronáutica, ITA, 1988.
PEREIRA FILHO, A J., SILVA, C.M. SILVEIRA, J.A., Demanda detalhada dos
aeroportos brasileiros: mercado doméstico de passageiros, XIII ANPET, São
Carlos – SP, 1999.
RUHL, T.A. and TRNAVSKIS, B., Airport trip generation, ITE JOURNAL, May, 1998.
__________ _ Aula 04 – Aeroportos_
Apostila de Aeroportos
209
SHAPIRO, P.S. and KATZMAN, M. , Relationship between airport activity and
ground transportations needs, Transportation Research Record 1622: 8-
12.(1998)
SHOENFELD,W.M .,Two programs to ease automobile congestion at Los Angeles
International Airport, Transportation Research Record No: 732 ,1979
__________ _ Aula 05 – Aeroportos_
Apostila de Aeroportos
210
AULA 05
HELIPORTOS E HELIPONTOS
A Portaria 256/GC5 (13/05/2011) trata somente sobre as Zonas de Proteção para os
Helipontos. Na falta de uma legislação específica da ANAC para os demais parâmetros
do projeto de helipontos, o projetista deverá pautar-se pelo Anexo 14 – Volume II –
Heliportos, revisado em 2009, como também no Manual de Heliportos da ICAO.
CLASSE DE PERFORMANCE DOS HELICÓPTEROS
Segundo a ICAO (Anexo 14 – Volume II) os heliportos são caracterizados em função da
classe de performance dos helicópteros que operam nos mesmos. De acordo com o
Anexo 6 da ICAO, os helicópteros dividem-se em três classes de performance: PC1, PC2
e PC3. Esta classificação é feita em função da capacidade do helicóptero de continuar o
voo durante a fase da descolagem em caso de falha de uma turbina.
A classe PC1 representa os helicópteros que em caso da falha de uma unidade de
potência têm capacidade de pousar na área de abortagem da decolagem (Rejected
Take-Off Area), ou prosseguir o voo até uma área de pouso apropriada.
Os helicópteros da classe PC3, onde se incluem todos os helicópteros mono-turbina, em
caso de falha da unidade de potência têm de proceder a um pouso forçado.
A classe PC2 é uma classe intermediária de performance entre as duas anteriormente
mencionadas.
FIGURA 1 – FATO por classe de performance do helicóptero - Fonte: Ref.[1]
__________ _ Aula 05 – Aeroportos_
Apostila de Aeroportos
211
DIMENSÕES CARACTERÍSTICAS DOS HELICÓPTEROS
D = maior dimensão do helicóptero
RD = diâmetro do rotor do helicóptero
UC = bitola do helicóptero
UCW = largura externa do trem de pouso do helicóptero
B = base do helicóptero
FIGURA 2 – Dimensões características do helicóptero para o dimensionamento
de um heliponto - Fonte: Ref.[1]
__________
DIMENSÕES CARACTERÍSTICAS DE UM HELICÓPTER
FIGURA 3 - Dimensões Características do Helicóptero Esquilo (AS
_
Apostila de Aeroportos
DIMENSÕES CARACTERÍSTICAS DE UM HELICÓPTER
Dimensões Características do Helicóptero Esquilo (AS
Aula 05 – Aeroportos_
212
DIMENSÕES CARACTERÍSTICAS DE UM HELICÓPTERO
Dimensões Características do Helicóptero Esquilo (AS 350)
__________ _ Aula 05 – Aeroportos_
Apostila de Aeroportos
213
D= 12,94m, RD= 10,69m, UC= 2,02m e UCW = 2,17m.
1 – ÁREA DE APROXIMACAO FINAL E DECOLAGEM (FATO) – área definida, no
entorno de um heliponto, sobre a qual a fase final da manobra de aproximação para
pairar ou pousar é completada e na qual a manobra de decolagem começa.
FIGURA 4 - FATO para PC1 em helipontos na Superfície – Fonte: Ref. [1]
Assim a FATO para os helicópteros PC1 será definida em função do manual de operação
do helicóptero (HFM) que estabelece o valor da distância necessária para abortagem da
decolagem (Reject Takeoff Distance), no caso de falha de uma turbina.
Dimensões da FATO para Helipontos na Superfície e Elevado
Classe de
Performance
Peso Máximo
de Decolagem
MTOW
FATO
PC1 -
De acordo com o manual do helicóptero
(HFM) e com uma largura =1D
PC2 ou PC3
> 3.175kg
Área que contem um círculo inscrito
diâmetro = 1D
≤ 3.175kg *
Área que contem um círculo inscrito
diâmetro = 0,83D
(*) Recomendado é 1D
Uma FATO deverá:
1) ter declividade média ≤ 3% em qualquer direção, e declividade máxima para
helicópteros PC1 = 5% e para PC2 ou PC3 = 7%;
2) ser uma superfície resistente ao efeito da turbulência do rotor;
3) ser livre de obstáculos que prejudicam a decolagem e pouso dos helicópteros;
4) ter suporte para acomodar o helicóptero PC1 na abortagem da decolagem.
__________ _ Aula 05 – Aeroportos_
Apostila de Aeroportos
214
A área de uma FATO ao redor da TLOF no caso de helicópteros PC2 ou PC3 deverá
suportar a carga estática do helicóptero.
Observação: as condições locais como altitude e temperatura devem ser consideradas
na determinação da dimensão de uma FATO. No Manual de Heliportos da ICAO (Doc
9261) são dadas orientações para a execução dessas correções.
2 – ÁREA DE TOQUE E DE ELEVAÇÃO INICIAL (TLOF) - área de um heliponto com
capacidade de suporte sobre a qual um helicóptero pode tocar ou se elevar do solo.
Para um heliponto na superfície a TLOF corresponderá a uma área que contem um
círculo inscrito com diâmetro = 0,83D do maior helicóptero que pretende servir.
Para um heliponto elevado a TLOF será igual a FATO.
Uma TLOF poderá ter qualquer formato e possuir uma declividade ≤ 2%. Quando a
TLOF for dentro da FATO, ela deverá suportar a carga dinâmica do helicóptero (Manual
de Heliportos da ICAO).
3 – SUPERFÍCIE DE APROXIMAÇÃO E DE DECOLAGEM
São superfícies definidas (ver figuras 9A, 9B, 9C e 10) conforme os parâmetros
estabelecidos nas tabelas HEL1, HEL2, HEL3 da Portaria 256/GC5. No caso do emprego
de uma superfície em curva os parâmetros deverão obedecer também à tabela HEL4.
4 – SUPERFÍCIE DE TRANSIÇÃO
São superfícies definidas (ver figura 11) conforme os parâmetros apresentados nas
tabelas HEL1 e HEL2 da Portaria 256/GC5.
5 – ÁREA DE SEGURANÇA - área de um heliponto definida no entorno da FATO, a qual
deve ser livre de obstáculos, exceto aqueles necessários à navegação aérea, com o
objetivo de reduzir riscos de danos aos helicópteros que se desviem, acidentalmente,
da FATO. Assim a área de segurança que circunda a FATO não necessita ser sólida.
A área de segurança para operação com helicópteros PC1 em Condições Meteorológicas
Visuais (VMC), deverá se estender fora da FATO a uma distância de pelo menos 3m ou
0,25D, tal que:
__________ _ Aula 05 – Aeroportos_
Apostila de Aeroportos
215
1) Cada lado externo da área de segurança seja pelo menos 2D, quando a FATO é
um quadrilátero;
2) O diâmetro externo da área de segurança seja pelo menos 2D quando a FATO é
circular.
Nas operações com helicópteros PC2 ou PC3 em VMC, a área de segurança deverá se
estender 3m ou 0,5D (o que for maior), tal que:
1) Cada lado externo da área de segurança seja ≥2D, quando a FATO é um
quadrilátero;
2) O diâmetro externo da área de segurança seja ≥2D, quando a FATO é circular.
No caso de operação em Condições Meteorológicas por Instrumentos (IMC) a área de
segurança deverá ter:
1) Lateralmente a largura de pelo menos 45m para cada lado do eixo, e
2) Longitudinalmente a distância de 60m além do final da FATO (definida pelo
Manual de Voo do Helicóptero – MFH), ou até o final da zona livre de obstáculos
(clearway).
A área de segurança quando for sólida, isto é, existir fisicamente, não deve exceder
a declividade de 4% para cima a partir da borda da FATO.
DISTÂNCIA MÍNIMA DE SEPARAÇÃO PARA FATO
Se o peso da aeronave ou helicóptero for
Distância entre borda da FATO e a
borda da pista P/D ou pista de táxi
Menor do que 3.175 kg 60 m
3.175 kg – menor do que 5.760 kg 120 m
5.7160 kg – menor do que 100.000 kg 180 m
100.000 kg ou maior 250 m
__________ _ Aula 05 – Aeroportos_
Apostila de Aeroportos
216
6 – SUPERFÍCIE HORIZONTAL INTERNA E SUPERFÍCIE CÔNICA
São superfícies definidas (ver figuras 8 e 11) conforme os parâmetros apresentados nas
tabelas HEL1 e HEL2 da Portaria 256/GC5.
PLANO BÁSICO DE ZONA DE PROTEÇÃO DE HELIPONTO
Um Plano Básico de Zona de Proteção de Heliponto (PBZPH) é definido em função das
superfícies limitadoras de obstáculos de helipontos e com base no planejamento
aprovado para o heliponto.
0 PBZPH contem as seguintes superfícies:
1 - Superfície de Aproximação;
2 - Superfície de Decolagem;
3 - Superfície de Transição;
4 - Superfície Horizontal Interna; e
5 - Superfície Cônica.
__________ _ Aula 05 – Aeroportos_
Apostila de Aeroportos
217
FIGURA 5 – Plano Básico de Zona de Proteção de Heliponto
(Figura 8 da Portaria 256/GC5)
As superfícies limitadoras de obstáculos de helipontos são utilizadas para disciplinar a
ocupação do solo, de modo a garantir a segurança e a regularidade das operações
aéreas.
ESPECIFICAÇÕES PARA SUPERFÍCIES LIMITADORAS DE OBSTÁCULOS DE
HELIPONTOS
Os requisitos e parâmetros para as superfícies limitadoras de obstáculos de helipontos
são especificados com base no tipo de operação, visual e/ou por instrumentos.
As superfícies limitadoras de obstáculos aplicáveis a FATO para Aproximação Visual são
as seguintes:
1 - Superfície de Aproximação; e
2 - Superfície de Decolagem.
Os parâmetros e as dimensões das superfícies citadas constam das Tabelas HEL1, HEL3
e HEL4 e devem estar localizados conforme a Figura 9A da Portaria 256.
__________ _ Aula 05 – Aeroportos_
Apostila de Aeroportos
218
As superfícies limitadoras de obstáculos de helipontos aplicáveis a FATO para
Aproximação de Precisão e de Não Precisão são as seguintes:
1 - Superfície de Aproximação;
2 - Superfície de Decolagem;
3 - Superfície de Transição;
4 - Superfície Horizontal Interna; e
5 - Superfície Cônica.
Para uma FATO de aproximação de não precisão, a Superfície Cônica deixará de ser
obrigatória caso haja Superfície Horizontal Interna.
A Superfície Horizontal Interna será obrigatória, para uma FATO de aproximação de não
precisão, quando não for estabelecido procedimento de aproximação por instrumentos
para ambas as aproximações finais. Para uma FATO de aproximação de precisão, a
Superfície Horizontal Interna deverá ser desconsiderada.
Os parâmetros e as dimensões das superfícies citadas constam das Tabelas HEL1,
HEL2, HEL3 e HEL4 e devem estar localizados conforme as figuras 8 a 11 da Portaria
256/GC5.
Os helipontos com áreas de pouso circulares não possuirão a Superfície de Transição, e
as superfícies de Aproximação e Decolagem serão utilizadas em todas as direções.
Os helipontos públicos e privados, localizados sobre a superfície, a água ou elevado
devem ter, no mínimo duas superfícies de aproximação e decolagem, separadas por, no
mínimo, 150°. Os helipontos privados poderão, excepcionalmente, operar com apenas
uma superfície de aproximação e decolagem.
__________ _ Aula 05 – Aeroportos_
Apostila de Aeroportos
219
TABELA HEL1
__________ _ Aula 05 – Aeroportos_
Apostila de Aeroportos
220
TABELA HEL2
__________ _ Aula 05 – Aeroportos_
Apostila de Aeroportos
221
TABELA HEL3
__________ _ Aula 05 – Aeroportos_
Apostila de Aeroportos
222
TABELA HEL4
FIGURA 6 - Superfície de Aproximação e Decolagem VFR
(Figura 9A da Portaria 256/GC5)
__________ _ Aula 05 – Aeroportos_
Apostila de Aeroportos
223
FIGURA 7 - Superfície de Aproximação IFR Não Precisão
(Figura 9B da Portaria 256/GC5)
FIGURA 8 - Superfície de Aproximação IFR Precisão
(Figura 9C da Portaria 256/GC5)
__________ _ Aula 05 – Aeroportos_
Apostila de Aeroportos
224
FIGURA 9 - Superfície de Decolagem IFR
(Figura 10 da Portaria 256/GC5)
FIGURA 10 - Superfícies de Transição IFR
(Figura 11 da Portaria 256/GC5)
__________ _ Aula 05 – Aeroportos_
Apostila de Aeroportos
225
PISTAS DE TÁXI E ROTAS DE TAXIAMENTO PARA HELICÓPTEROS
Caso seja necessário, os helicópteros deverão se deslocar da FATO para a área de
estacionamento, ou vice-versa, através das pistas de táxi construídas na superfície,
para os helicópteros com rodas, ou aéreas definidas para os helicópteros sem rodas.
Para o deslocamento dos helicópteros com segurança são definidas também rotas de
taxiamento para as duas situações, ou seja, deslocamento na superfície e no ar.
PISTA DE TÁXI NA SUPERFÍCIE E ROTA DE TAXIAMENTO
X
FIGURA 11 – Pista de Táxi e Rota Taxiamento na superfície – Anexo 14 – Vol.
II
A pista de táxi deverá ter uma largura igual ou superior a 1,5 UCW (largura externa do
trem de pouso) do maior helicóptero que ela pretende servir.
A pista de táxi deverá ter uma declividade longitudinal menor do que 3%. Deverá ter
suporte para resistir à carga estática e atender ao tráfego pretendido de helicópteros.
A pista de táxi de helicópteros deverá ser centrada na rota de taxiamento, e esta rota
se estenderá simetricamente para cada lado da linha central da pista de táxi pelo
menos 0,75 do valor da maior largura total do helicóptero (RD), que ela deseja servir.
Nenhum objeto será permitido na área da rota de taxiamento, exceto os objetos
frangíveis, localizados na área por causa de sua função.
A pista de táxi e a rota de taxiamento deverão prover a rápida drenagem, contudo a
declividade transversal da pista de táxi não deve exceder a 2%.A superfície da rota de
taxiamento deverá ser resistente à turbulência causada pelo rotor.
__________ _ Aula 05 – Aeroportos_
Apostila de Aeroportos
226
PISTA DE TÁXI NO AR E ROTA DE TAXIAMENTO NO AR
FIGURA 12 – Pista de Táxi e Rota Taxiamento no Ar – Anexo 14 – Vol. II
A largura da pista de táxi no ar deverá ter a largura igual ou superior a 2,0 UCW
(largura externa do trem de pouso) do maior helicóptero que ela pretende servir.
A superfície da pista de táxi no ar deverá ser capaz de atender ao pouso de emergência
e ter suporte para resistir à carga estática dos helicópteros.
A declividade transversal da pista de táxi no ar não deverá ser superior a 10%, bem
como a declividade longitudinal não deve exceder a 7%. E, de qualquer maneira, a
declividade não deverá exceder a declividade limite para pouso dos helicópteros que ela
pretende servir.
A pista de táxi no ar deverá ser centrada na rota de taxiamento no ar, e esta rota
deverá se estender simetricamente para cada lado da linha central uma distância igual
ou maior que 2,0 vezes o valor da maior largura total (RD) do helicóptero que deseja
servir.
Nenhum objeto será permitido na área da rota de taxiamento no ar, exceto os objetos
frangíveis, localizados na área por causa de sua função.
A superfície da rota de taxiamento no ar deverá ser resistente à turbulência causada
pelo rotor e a sua superfície deverá prover o “efeito solo”.
__________ _ Aula 05 – Aeroportos_
Apostila de Aeroportos
227
PÁTIO DE ESTACIONAMENTO E POSIÇÃO DE PARADA DE HELICÓPTEROS
A posição de parada do helicóptero deverá ter dimensão suficiente para conter um
círculo de 1,2D do maior helicóptero que a posição de parada pretende servir. Se a
posição de parada for usada como táxi de passagem, a largura mínima da posição de
parada e da área de proteção associada deverá ser igual a da rota de taxiamento.
FIGURA 13 – Posição de Parada de Helicópteros – Anexo 14 – Vol. II
A declividade em qualquer direção da área de parada do helicóptero não deverá exceder
o valor de 2%.
Quando a posição de parada é usada para o giro de um helicóptero, ela deverá ser
cercada por uma área de proteção que se estende a uma distância de 0,4D da borda da
área de parada.
__________ _ Aula 05 – Aeroportos_
Apostila de Aeroportos
228
FIGURA 14 – Posição de Parada de Helicópteros com Área de Segurança –
Anexo 14 – Vol. II
Para operações simultâneas, a área de parada e proteção associada, bem como a rota
de taxiamento não deve sofrer superposição. Onde não houver operação simultânea
prevista poderá ocorrer à superposição.
FIGURA 15 – Posições de Parada com operação simultânea – Anexo 14 – Vol.
II
__________ _ Aula 05 – Aeroportos_
Apostila de Aeroportos
229
FIGURA 16 – Posições de Parada sem operação simultânea – Anexo 14 – Vol.
II
Quando uma área de parada for usada para pista de táxi na superfície deverá ser
levado em conta o raio mínimo de giro das rodas do trem de pouso do helicóptero que
ela pretende servir. Neste caso a sua superfície também deverá prover o “efeito solo”.
Objetos fixos não são permitidos na área de parada e na área de proteção associada do
helicóptero.
A parte central da área de parada deve ter capacidade para atender ao tráfego dos
helicópteros que pretende servir e uma área com suporte para a carga estática igual:
1) Àquela com um diâmetro maior ou igual a 0,83D do maior helicóptero;
2) A posição de parada que será usada como pista de táxi de passagem adotando a
mesma largura de uma pista de táxi de superfície.
__________ _ Aula 05 – Aeroportos_
Apostila de Aeroportos
230
CARGAS PARA O DIMENSIONAMENTO ESTRUTURAL EM HELIPONTO ELEVADO
No cálculo estrutural deverá ser considerada uma carga de impacto igual a 75% do
Peso Máximo de Decolagem do Helicóptero (MTOW) sobre cada montante principal.
A área de aplicação da carga de impacto será igual a 0,09m2 por pneu ou esqui.
As demais cargas serão de acordo com ABNT: (NBR 6.120) – 300 kg/m2 em toda a
extensão.
Para os helipontos elevados são consideradas três situações de carga:
1ª Hipótese – Peso próprio + sobrecarga de 300 kg/m2.
2ª Hipótese – Peso próprio + carga de impacto do helicóptero (75% MTOW) atuando
em pontos desfavoráveis da TLOF + 100 kg/m2 de carga aerodinâmica.
3ª Hipótese – Combinação análise de ventos (NBR 6.123) com cada uma das hipóteses
anteriores, somando-se a situação mais desfavorável.
Demais instruções podem ser obtidas no Manual de Heliportos da ICAO (Doc 9261).
Tabela da Categoria dos Helicópteros pelo MTOW
Categoria do
Helicóptero
Peso máximo de descolagem
MTOW
Distância entre
rodas do trem
(kg) (kN) (m)
1 Até 2.300 Até 22.6 1.75
2 2.301 – 5.000 33.6 – 49.2 2.0
3 5.001 – 9.000 49.2 – 88.5 2.5
4 9.001 – 13.500 88.5 – 133.0 3.0
5 13.501 – 19.500 133.0 – 192.0 3.5
6 19.501 – 27.000 192.0 – 266.0 4.5
Fonte: Ref. [1] – adaptado do Manual de Heliportos da ICAO
__________ _ Aula 05 – Aeroportos_
Apostila de Aeroportos
231
AUXÍLIOS VISUAIS PARA HELIPONTOS
Os helipontos deverão estar equipados com pelo menos um Indicador de Direção de
Ventos (conhecido como Biruta), conforme NBR 12.647 da ABNT.
SINALIZAÇÃO HORIZONTAL
Os helipontos deverão ter também uma sinalização horizontal efetivada por uma pintura
que será composta pelos seguintes elementos:
1) Sinal de identificação do heliponto – letra “H” na cor branca e no caso de hospitais
também a pintura de uma cruz (cor branca) e o H (cor vermelha), conforme figura 17;
2) Número indicador do peso máximo de resistência do piso (em toneladas), composto
de 1, 2 ou 3 dígitos e a letra “t” (ver figura 18) e com uma cor de contraste com o piso;
3) Indicador do valor do maior D admissível nos helipontos elevados, pintura preferível
na cor branca e com o valor dado em metros e arredondamento de 0,5m (deve ser lido
no sentido da aproximação);
4) Delimitação da área da FATO nos helipontos na superfície, quando for necessário
evidenciá-la, será feita através da pintura de faixas descontínuas na cor branca com 9m
de comprimento ou 1/5 da dimensão da FATO e com 1m de largura. Para uma FATO
quadrada ou retangular o espaçamento máximo entre as faixas será 50m e no mínimo
3 em cada lado, incluindo-se as faixas dos vértices. E, para qualquer outra forma,
inclusive a circular, o espaçamento máximo será 10m e no mínimo de 5 faixas;
5) Designação da FATO, quando for necessário para o piloto, deverão ser pintados (ver
figura 19) no início da FATO os números referentes a um décimo do azimute magnético
do rumo da aproximação (dimensões conforme Anexo 14 – Vol. I – Aeródromos);
6) Sinalização do ponto alvo, deve existir no heliponto onde é necessário para o piloto
fazer a aproximação por um ponto particular antes de se dirigir para a TLOF. Este ponto
(ver figura 20) deverá ser posicionado dentro da FATO;
6) Delimitação da TLOF através da pintura de uma faixa contínua na cor branca no
perímetro da área com uma largura de pelo menos 30cm;
7) Sinalização de posição do toque, ela deverá ser pintada quando para o toque do
helicóptero no pouso for necessário definir uma posição exata. A sinalização será uma
pintura de um círculo na cor amarela com pelo menos 0,5m de largura e o diâmetro
interno será igual a 0,5D do maior helicóptero que o heliponto pretende servir;
8) Pintura do nome do heliponto, é usada quando não há meios alternativos suficientes
para a identificação visual do heliponto. Os caracteres terão uma altura maior do que
__________ _ Aula 05 – Aeroportos_
Apostila de Aeroportos
232
3m nos helipontos na superfície e uma altura maior do que 1,2m nos elevados. A cor da
pintura do nome deverá contrastar com a do piso.
FIGURA 17 – Sinalização de Identificação do Heliponto – Anexo 14 – Vol. II
FIGURA 18 – Número indicador do peso máximo admissível no Heliponto –
Anexo 14 – Vol. II
__________ _ Aula 05 – Aeroportos_
Apostila de Aeroportos
233
FIGURA 19 – Designação da FATO – Anexo 14 – Vol. II
FIGURA 20 – Sinalização do Ponto Alvo – Anexo 14 – Vol. II
__________ _ Aula 05 – Aeroportos_
Apostila de Aeroportos
234
SINALIZAÇÃO LUMINOSA EM HELIPONTOS
Um heliponto quando for projetado para operações noturnas deverá ter os seguintes
elementos de sinalização luminosa:
1) Farol de aeródromo – quando necessário para identificar o heliponto;
2) Sistema de luzes de aproximação – quando se desejar indicar a direção de
aproximação;
3) Sistema de guia de alinhamento visual – quando necessário pelas circunstâncias
locais de aproximação;
4) Indicador visual de rampa de aproximação (PAPI, APAPI e HAPI);
5) Luzes de delimitação da FATO – são necessárias;
6) Luzes do sistema de iluminação da TLOF – são necessárias;
7) Luzes de pista de táxi (eixo e bordas);
8) Luzes de sinalização de obstáculos; e
9) Holofotes para destaque de obstáculos.
As luzes de delimitação da área da FATO são usadas nos helipontos de superfície com
operações noturnas, exceto naqueles em que a TLOF é muito próxima ou coincidente,
ou ainda quando a extensão da FATO é visualmente evidente.
As luminárias das luzes de delimitação serão localizadas ao longo da borda da FATO,
emitindo a cor branca e uniformemente espaçadas, conforme o seguinte:
1) Área de forma quadrada ou retangular a intervalos não maior do que 50m e, no
mínimo 4 luminárias em cada lado, incluindo-se as luminárias de cada vértice;
2) Para outros formatos, incluindo a forma circular, as luminárias serão dispostas a
intervalos máximos de 5m e, com um mínimo de 10 luminárias.
As luminárias das luzes de delimitação da FATO não deverão exceder a altura de 25cm.
Elas deverão ser embutidas quando a ultrapassagem do nível da superfície da FATO
prejudicar a operação dos helicópteros.
As luzes do sistema de iluminação da área da TLOF são usadas nos helipontos com
operações noturnas, e consistem de um ou mais dos seguintes elementos.
Para helipontos na superfície, serão:
1) Luzes de delimitação do perímetro; ou
2) Holofotes para iluminar a área da TLOF; ou
3) Barras de luzes pontuais (ASPSL), ou painel luminescente (PL) quando as opções
“1” e “2” não são praticáveis e existem luzes de delimitação da FATO.
__________ _ Aula 05 – Aeroportos_
Apostila de Aeroportos
235
Para helipontos elevados, serão:
1) Luzes de delimitação do perímetro; e
2) ASPSL e/ou PL para identificar a sinalização de toque, e/ou holofotes para
iluminar a área da TLOF.
As luzes de delimitação do perímetro da TLOF serão dispostas ao longo da borda, ou
dentro de uma distância de 1,5m no máximo. Quando a TLOF for de forma circular as
luzes deverão ser:
1) Posicionadas em linha reta com padrões que dão informação ao piloto sobre o
seu desvio no deslocamento, e
2) Quando a opção “1” não é praticável, serão uniformemente espaçadas ao longo
do perímetro da TLOF em intervalos apropriados, exceto sobre o setor de 45
graus onde as luzes deverão ter espaçamento reduzido para a metade.
As luzes de delimitação do perímetro da TLOF serão posicionadas em intervalos não
maiores do que 3m para helipontos elevado e 5m para helipontos na superfície.
Na instalação das luzes de delimitação do perímetro da TLOF será adotado um número
mínimo de 4 luminárias em cada lado, incluindo-se as luminárias dos vértices. No caso
de uma TLOF circular, e se a instalação for realizada conforme item “2” do parágrafo
anterior, o número mínimo de luminárias será igual a 14.
As luzes das luminárias instaladas no perímetro da TLOF serão na cor verde, de modo
que em helipontos elevados não poderão ser vistas pelo piloto quando vier de abaixo
para alcançar a plataforma da TLOF.
Os holofotes de iluminação da TLOF deverão ser posicionados de modo que não causem
ofuscamento ao piloto na aproximação, ou às pessoas que estão trabalhando na área.
Na instalação das luzes de uma pista de táxi de helipontos, seja no caso das luzes de
eixo, ou das luzes de borda da pista de táxi, os intervalos entre luminárias e as cores
das luzes obedecerão aos mesmos padrões adotados para os projetos de aeródromos,
segundo o Anexo 14 – Volume I.
As instalações das luzes de sinalização de obstáculos também seguirão os padrões
estabelecidos pelo Anexo 14 – Volume I.
Quando não for possível instalar as luzes sinalizadoras nos obstáculos, então deverão
ser adotados holofotes para destacá-los no período noturno.
__________ _ Aula 05 – Aeroportos_
Apostila de Aeroportos
236
SELEÇÃO DE SÍTIOS PARA HELIPORTOS Ref. [2]
Um dos aspectos mais importantes de planejamento e projeto de um sistema de
heliportos é a seleção apropriada dos sítios. Os estudos de escolha de sítio devem levar
em conta os objetivos que maximizem a conveniência do usuário, segurança da
aeronave e a aceitação da comunidade. O primeiro passo deve consistir na identificação
e análise da viabilidade das fontes de informação. Os estudos de escritório devem
incluir os seguintes componentes:
1 – A consideração de estudos relevantes existentes (exemplo: plano de sistema de
aeroportos metropolitanos, plano de uso do solo e planos de transportes abrangentes).
Esses estudos podem conter previsões de uso do solo, O-D de viagem, dados de tempo
de viagem para o transporte de superfície e outras informações.
2 – Uma análise das informações de vento disponíveis para determinar a orientação
desejável da aproximação do heliporto.
3 – Estudos de cartas do IBGE e mapa rodoviário e cartas aeronáuticas, para a seleção
futura e avaliação de sítios prováveis.
4 – Estudo do custo das áreas de interesse. Uma inspeção aérea de cada sítio para
helicóptero poderá ajudar bastante na avaliação de possíveis obstáculos no vôo,
existência de áreas de pouso de emergência localizadas ao longo da aproximação,
turbulências por vento, e outras características relacionadas à navegação aérea.
Uma detalhada inspeção no local de cada sítio sob estudo deve ser realizada antes de
uma comparação final feita para escolha dos sítios alternativos.
Pelo menos 8 fatores devem ser considerados quando da análise de sítios potenciais
para heliportos:
1 – Classe e plano do heliporto;
2 – Conveniência dos usuários;
3 – Obstrução do espaço aéreo;
4 – Coordenação com outros movimentos de aeronaves;
5 – Direção do vento predominante;
6 – Fatores sociais;
7 – Turbulência; e
8 – Visibilidade.
__________ _ Aula 05 – Aeroportos_
Apostila de Aeroportos
237
Observação: os helicópteros são mais apropriados para realizarem os transportes em
distâncias curtas, tipicamente utilizado nas viagens até 75 milhas (136,5km).
FATORES RELACIONADOS À SELEÇÃO DE SÍTIOS – Ref. [2]
A seleção de um sítio para heliporto em área urbano requer a consideração de muitos
fatores, os mais importantes deles são:
1 – A melhor locação para servir ao tráfego potencial;
2 – A mínima obstrução nas áreas de aproximação e decolagem;
3 – A mínima perturbação sonora (ruído) e locação desejável considerando o “uso do
solo” adjacente;
4 – Um bom acesso por transporte de superfície e estacionamento;
5 – Um custo mínimo para aquisição e desenvolvimento;
6 – Duas áreas de aproximação separadas pelo menos de 90º;
7 – Evitar o conflito de tráfego entre helicópteros e outro tipo de tráfego aéreo;
8 – Consideração da turbulência e restrições de visibilidade apresentadas pelos edifícios
próximos; e
9 – Previsão de área de pouso de emergência ao longo de toda a rota para helicópteros
com uma turbina.
A escolha final de um sítio para heliporto usualmente irá requer um compromisso entre
estes vários objetivos.
O problema mais crítico pode ser esperado em grandes cidades, áreas metropolitanas
altamente desenvolvidas. Em grandes áreas urbanas heliportos devem ser planejados
como base regional. O primeiro passo é preparar uma estimativa de demanda por
serviços de helicópteros e a origem e destino (O-D) dessa demanda.
A segunda etapa é selecionar o sítio do heliporto ou sítios que podem satisfazer
razoavelmente a demanda e ainda atender aos requisitos enumerados no parágrafo
anterior.
O principal mercado de transporte por helicópteros é nos grandes centros urbanos entre
aeroportos, ou aeroportos e ponto central. Portanto, é essencial que o heliporto do
centro da cidade seja localizado próximo a área de hotéis, e os centros de negócios. Da
mesma forma, uma adequada previsão de pouso de helicópteros deve ser feita nos
aeroportos.
__________ _ Aula 05 – Aeroportos_
Apostila de Aeroportos
238
TABELA DE CARACTERÍSTICAS DE HELICÓPTEROS
Tipos
Helicópteros
D (m) RD (m)
Rotor
Capacidade
Nº Pessoas
Peso
(kg)
Carga
(Kg)
Velocidade
(km/h)
Alcance
(km)
Esquilo 12,94 10,69 1P+5/6Pax 2.250 1.078 246 666
Colibri 117 13,00 11,00 1P+7/10Pax 3.350 1.595 246 540
Colibri 135 12,19 10,20 2P+5/6Pax 2.835 1.255 256 615
Dolphin 365* 13,73 11,94 2P+11Pax 4.250 1.979 275 860
Super Puma* 18,70 15,60 2P+20Pax 8.600 4.500 262 831
AW119Ke 12,92 10,83 1P+7Pax 3.150 1.695 257 935
AW109Power* 13,04 11,00 1P+7Pax 3.000 1.410 285 948
AW139* 16,66 13,80 2P+14 6.400 2.680 306 1.250
Projeto 20,00 16,00 2P+20Pax 10.000 4.500 262 831
Projeto 1 14,00 12,00 2P+11Pax 5.000 1.979 275 860
Esquilo1 13,00 10,70 1P+5/6Pax 2.250 1.078 246 666
Nota: (*) Helicóptero com duas turbinas.
__________ _ Aula 05 – Aeroportos_
Apostila de Aeroportos
239
SISTEMA DE COMBATE CONTRA-INCÊNDIO EM HELIPONTOS
De acordo com o Apêndice I ao Anexo à Resolução nº 115 da ANAC, de 06/10/2009, os
helicópteros para efeito de proteção e combate contra-incêndio são classificados nas
seguintes categorias.
Categoria de Classificação do Helicóptero
Categoria Comprimento Total - D
H1 <15m
H2 15 a <24m
H3 24 a <35m
O nível de proteção do heliponto em relação ao combate contra incêndio, seja na
superfície ou elevado, é atingido pela existência da quantidade mínima de agentes
extintores de incêndio no heliponto, conforme as tabelas apresentadas a seguir:
Quantidades mínimas de agentes extintores por categoria heliponto superfície
Categoria do
heliponto
Espuma de eficácia nível B Agente complementar
Água para
produção de
espuma
(litros)
Regime descarga
solução de espuma
(litros/min)
Pó
químico
(kg)
Regime
descarga
(kg/s)
[1] [2] [3] [4] [5]
H1 500 250 23 2,25
H2 1.000 500 45 2,25
H3 1.600 800 90 2,25
__________ _ Aula 05 – Aeroportos_
Apostila de Aeroportos
240
Quantidades mínimas de agentes extintores por categoria heliponto elevado
Categoria do
heliponto
Espuma de eficácia nível B Agente complementar
Água para
produção de
espuma
(litros)
Regime descarga
solução de espuma
(litros/min)
Pó
químico
(kg)
Regime
descarga
(kg/s)
[1] [2] [3] [4] [5]
H1 2.500 250 45 2,25
H2 5.000 500 45 2,25
H3 8.000 800 45 2,25
PLANO BÁSICO DE ZONEAMENTO DE RUÍDO DE HELIPONTOS
O Pano Básico de Zoneamento de Ruído de helipontos de acordo com o RBAC 161 é
definido pelas curvas de ruído de 75 e 65, as quais são traçadas como círculos a partir
do centro geométrico do heliponto com os raios de 100 e 300 metros, respectivamente.
A restrição do uso e ocupação do solo no entorno do heliponto será definida segundo a
tabela E-1 da Subparte E - Uso do Solo - do RBAC 161 da ANAC.
FIGURA 21 – Configuração das Curvas de Ruído 75 e 65 para helipontos
__________ _ Aula 05 – Aeroportos_
Apostila de Aeroportos
241
REFERÊNCIAS:
1- Luís Felipe Magalhães Pereira - AFA 1061, Tese de Mestrado: Concepção e
dimensionamento de um heliporto elevado para operação do EH-101 Merlin –
Academia da Força Aérea e Instituto Superior Técnico – Universidade Técnica de
Lisboa, Ciências Militares e Aeronáuticas, Especialidade de Engenharia de
Aeródromos, Ramo Estruturas, Portugal, Fevereiro de 2008.
2- Planning and Design of Airports – Robert Horonjeff and Francis X. McKelvey – 3ª
Edição Editora McGraw – Hill Inc. 1986.

Apostila completa sobre aeroportos

  • 1.
    Universidade Federal deSanta Catarina Departamento de Engenharia Civil Programa de Educação Tutorial Universidade Federal de Santa Catarina Centro Tecnológico Departamento de Engenharia Civil Apostila de Aeroportos 2012 Programa de Educação Tutorial – PET Profª Lenise Grando Goldner Universidade Federal de Santa Catarina
  • 2.
    Universidade Federal deSanta Catarina Departamento de Engenharia Civil Universidade Federal de Santa Catarina Centro Tecnológico Departamento de Engenharia Civil Apostila de Aeroportos Profª Lenise Grando Goldner Colaboração dos Bolsistas PET: Juliana Vieira dos Santos Valmir Universidade Federal de Santa Catarina Lenise Grando Goldner Colaboração dos Bolsistas PET: Juliana Vieira dos Santos Valmir Cominara Junior
  • 3.
    Aeroportos Apostila de Aeroportos SUMÁRIO MÓDULOI AULA 01...............................................................................................................................................11 1. Introdução à Organização do Transporte Aéreo.........................................................................11 1.1. Espaço Aéreo...........................................................................................................................11 1.2. Princípios Gerais......................................................................................................................11 1.3. Organizações Internacionais de Regulamentação da Aviação Civil ........................................12 1.3.1. Internacional Civil Aviation Organization – ICAO...............................................................12 1.3.2. Internacional Air Transport Association - IATA...................................................................13 1.3.3. Federal Aviation Administration - FAA................................................................................13 1.3.4. Ministério da Aeronáutica do Brasil....................................................................................13 1.3.5. Comando da Aeronáutica do Brasil - COMAER...................................................................13 1.3.6. Agência Nacional de Aviação Civil - ANAC...........................................................................13 1.4. Legislação Nacional e Internacional........................................................................................14 1.5. Evolução do Transporte Aéreo Regular No Brasil ...................................................................14 1.5.1. Período de 1927 a 1939 ......................................................................................................14 1.5.2. Período de 1939 a 1959 ......................................................................................................15 1.5.3. Período de 1961 a 1968 ......................................................................................................15 1.5.4. Período de 1969 a 1980 ......................................................................................................15 1.5.5. Período de 1981 a 1989 ......................................................................................................15 1.5.6. Período de 1988 a 1998 ......................................................................................................15 1.5.7. Período de 1998 a 2004 ......................................................................................................15 1.5.8. Período de 2005..................................................................................................................16 1.5.9. Período de 2006..................................................................................................................17 1.5.10. Período de 2007..................................................................................................................17 1.5.11. Período de 2008..................................................................................................................17 1.5.12. Período de 2009..................................................................................................................18
  • 4.
    Aeroportos Apostila de Aeroportos 1.5.13.Período de 2010..................................................................................................................19 AULA 02...............................................................................................................................................21 1. Composição de Peso e Desempenho em Cruzeiro......................................................................21 1.1. Definições................................................................................................................................21 1.1.1. Limitantes estruturais .........................................................................................................21 1.1.2. Limitantes operacionais ......................................................................................................22 1.2. Definições dos Pesos, Segundo Manuais do Airport Planning (Boeing 747 – 1984)...............22 1.3. Desempenho em Cruzeiro.......................................................................................................23 1.4. Pontos Notáveis ......................................................................................................................24 2. Nomenclatura Utilizada...............................................................................................................24 3. Classificações...............................................................................................................................26 3.1. Segundo a 1019.......................................................................................................................26 3.2. Operacional.............................................................................................................................26 3.2.1. Pista de Pouso por Instrumentos........................................................................................26 3.2.2. Pista para Pouso sem Instrumentos....................................................................................27 3.3. ICAO.........................................................................................................................................27 AULA 03...............................................................................................................................................29 1. Introdução à Mecânica de Locomoção do Avião ........................................................................29 1.1. O Avião ....................................................................................................................................29 1.2. Componentes..........................................................................................................................29 1.3. Noções de Mecânica de Vôo...................................................................................................31 1.3.1. Aerofólios............................................................................................................................31 1.3.1.1. Forças que atuam sobre a superfície de um aerofólio....................................................31 1.3.1.2. Elementos do Aerofólio e do Seu Perfil ..........................................................................33 1.3.1.3. Quantidade das Forças que Atuam em um Aerofólio.....................................................34 1.3.2. Forças que Atuam no Avião ................................................................................................36 1.3.2.1. Eficiência Aerodinâmica..................................................................................................37
  • 5.
    Aeroportos Apostila de Aeroportos 1.3.2.2.Força de Tração e Potênica Necessária ao Vôo...............................................................37 1.3.2.3. Estol.................................................................................................................................39 AULA 04...............................................................................................................................................41 1. Dimensionamento do Comprimento De Pista ............................................................................41 1.1. Comprimento de Pista.............................................................................................................41 1.2. Definições................................................................................................................................42 1.3. Comprimento de Pista Balanceada.........................................................................................43 1.3.1. Decolagem sem Falha .........................................................................................................43 1.3.2. Conclusões...........................................................................................................................43 1.4. Comprimento da Pista para Pouso..........................................................................................44 1.5. Procedimento de Subida.........................................................................................................44 2. Determinação do Comprimento de Pista Necessário – Desempenho na Decolagem................45 2.1. Determinantes do Comprimento de Pista ..............................................................................45 2.2. Fatores que Determinam o Comprimento de Pista para Decolagem.....................................46 2.3. Comprimento de Pista a Ser Construído.................................................................................47 3. Fatores de Correção (segundo ICAO)..........................................................................................51 4. Nomenclatura Conhecida............................................................................................................51 5. Pistas de Pouso / Decolagem ......................................................................................................52 5.1. Código de Referência do Aeródromo......................................................................................52 5.2. Largura da Pista de Pouso / Decolagem..................................................................................53 AULA 05...............................................................................................................................................54 1. Configuração Do Aeroporto ........................................................................................................54 1.1. Configuração de Pistas de Pouso: ...........................................................................................54 1.1.1. Objetivos do Planejamento.................................................................................................54 1.2. Orientação de Pistas................................................................................................................54 1.2.1. Determinação Gráfica da Orientação da Pista....................................................................55 1.3. Quantidade de Pistas de Pouso e Decolagem.........................................................................61
  • 6.
    Aeroportos Apostila de Aeroportos 1.4.Capacidades Horárias Estimadas.............................................................................................61 1.5. Configuração de Pistas – Comparação....................................................................................61 1.6. Pistas de Táxi...........................................................................................................................62 1.6.1. Objetivos do Planejamento.................................................................................................62 1.6.2. Pista de Táxi-Saída...............................................................................................................62 1.7. Baias de Espera........................................................................................................................64 1.8. Evolução do Sistema de Pistas de Táxi....................................................................................64 1.9. Localização da Área Terminal / Pátio de Aeronaves...............................................................64 1.9.1. Objetivos de Planejamento.................................................................................................64 1.9.2. Fatores que influenciam a localização da Área Terminal....................................................64 1.9.3. Localização de Instalações da Área Terminal......................................................................65 2. Outras Instalações.......................................................................................................................67 2.1. Infra-estrutura de Apoio .........................................................................................................67 AULA 06...............................................................................................................................................72 1. Escolha De Sítio Aeroportuário ...................................................................................................72 1.1. Objetivo...................................................................................................................................72 1.2. Etapas do Processo de Escolha ...............................................................................................72 1.3. Fatores que Influenciam Dimensões do Aeroporto................................................................72 1.4. Estudo de Escritório de Possíveis Alternativas........................................................................72 1.4.1. Critérios Básicos de Localização..........................................................................................72 1.5. Metodologia de Escolha de Sítio Aeroportuário.....................................................................73 AULA 07...............................................................................................................................................78 1. Plano Diretor Aeroportuário .......................................................................................................78 1.1. Características Gerais..............................................................................................................78 1.1.1. Seqüência de Fases .............................................................................................................78 1.2. Informações Básicas................................................................................................................78 1.3. Estudos Preliminares...............................................................................................................79
  • 7.
    Aeroportos Apostila de Aeroportos 1.3.1.Estudo da demanda do Transporte Aéreo..........................................................................79 1.3.2. Estudo da Capacidade da Infra-estrutura Aeroportuária....................................................79 1.4. Escolha do Local ......................................................................................................................80 1.4.1. Estudo de Gabinete.............................................................................................................80 1.4.2. Pesquisas de Campo............................................................................................................80 1.4.3. Avaliação Final e Seleção.....................................................................................................80 1.5. Planejamento Geral do Aeroporto..........................................................................................80 1.6. Impactos..................................................................................................................................81 1.6.1. Sociais..................................................................................................................................81 1.6.2. Econômicos .........................................................................................................................81 1.6.3. Ambientais ..........................................................................................................................81 1.7. O Plano Diretor de acordo com as Normas da Icao................................................................86 1.7.1. Demanda de Tráfego...........................................................................................................89 1.7.2. Crescimento de Passageiros e de Aeronaves (doméstico e internacional) ........................89 1.8. Estrutura do Relatório sobre o Plano Diretor .........................................................................91 AULA 08...............................................................................................................................................93 1. Plano de Zona de Proteção de Aeródromo.................................................................................93 1.1. Legislação Internacional..........................................................................................................93 1.2. Legislação Brasileira ................................................................................................................93 1.3. Plano Básico de Zona de Proteção de Aeródromo..................................................................93 1.4. Plano Específico de Zona de Proteção de Aeródromo............................................................94 1.5. Plano de Zona de Proteção de Aeródromo.............................................................................94 1.6. Faixa de Pista...........................................................................................................................95 1.7. Superfície de Aproximação .....................................................................................................95 1.8. Superfície de Decolagem.........................................................................................................96 1.9. Superfície de Aproximação e Transição Interna e Pouso Interrompido.................................98 1.10. Superfície de Transição .....................................................................................................100
  • 8.
    Aeroportos Apostila de Aeroportos 1.11.Superfície Horizontal Interna ............................................................................................101 1.12. Superfície Cônica...............................................................................................................102 1.13. Especificações para Superfícies Limitadoras de Obstáculos de Aeródromos...................103 1.14. Requisitos para Elaboração do PBZPA ..............................................................................104 1.14.1. Tipo de operação do aeródromo ......................................................................................104 1.14.2. Código da pista..................................................................................................................105 2. Plano de Zoneamento de Ruído................................................................................................105 AULA 09.............................................................................................................................................108 1. O Terminal de Passageiros ........................................................................................................108 1.1. Funções Básicas do Terminal ................................................................................................108 1.2. Concepções Básicas de um TPS.............................................................................................108 1.2.1. Forma do Terminal............................................................................................................108 1.2.2. Nível do Processamento....................................................................................................108 1.3. Fluxos no Terminal de Passageiros .......................................................................................109 1.3.1. Demanda do Transporte Aéreo.........................................................................................109 1.3.2. Dimensionamento do TPS (Doméstico/Internacional) .....................................................109 1.4. Principais Componentes Operacionais..................................................................................109 1.4.1. Embarque..........................................................................................................................109 1.4.2. Desembarque....................................................................................................................109 1.4.2.1. Trânsito..........................................................................................................................110 1.4.2.2. Índices e Áreas...............................................................................................................110 1.4.3. Parâmetros de Interesse...................................................................................................110 1.4.4. Perfil do Passageiro...........................................................................................................110 1.5. Bibliografia ............................................................................................................................110
  • 9.
    Aeroportos Apostila de Aeroportos AULA01.............................................................................................................................................136 1. Pavimento De Aeroportos.........................................................................................................136 1.1. Dimensionamento de Pavimentos........................................................................................136 1.2. Conceitos Fundamentais.......................................................................................................136 1.3. Características das Aeronaves: Tipos de Trem de Pouso......................................................137 1.4. Mecânica dos Pavimentos.....................................................................................................137 1.5. Dimensionamento de Pavimentos........................................................................................138 Determinação da Equivalência de Partidas Anuais para a Aeronave de Projeto..............................140 1.6. Dimensionamento e Pavimento Flexível...............................................................................144 1.6.1. Camadas do Pavimento.....................................................................................................144 1.6.2. Dados a Serem Considerados no Projeto..........................................................................144 1.7. Espessura Mínima da Base....................................................................................................145 1.8. Tabelas de Equivalência para projeto de reforço .................................................................146 1.9. Pavimentos para Aeronaves Leves........................................................................................152 1.10. Dimensionamento dos Pavimentos Rígidos......................................................................155 1.11. Dimensionamento dos Pavimentos Rígidos......................................................................158 1.12. Tamanho de Juntas de Placas sem Sub-Base Estabilizada................................................162 1.13. Tamanho de Juntas de Placas com Sub-Base Estabilizada................................................162 Exercício de Dimensionamento de Pavimento Flexível ....................................................................164 AULA 02.............................................................................................................................................165 1. Drenagem em Aeroportos.........................................................................................................165 1.1. As Áreas dos Aeroportos.......................................................................................................165 1.2. Funções da Drenagem...........................................................................................................165 1.3. Estimativa da Água de Escoamento das Chuvas ...................................................................165 1.4. Método Racional...................................................................................................................165 1.5. Operação do Método............................................................................................................165 1.6. Fórmulas Utilizadas ...............................................................................................................166
  • 10.
    Aeroportos Apostila de Aeroportos 1.7.Exercícios de Drenagem – Método Racional.........................................................................170 AULA 03.............................................................................................................................................177 1. Sinalização Horizontal de Pista..................................................................................................177 1.1. Tipos de Sinalização ..............................................................................................................177 1.2. Pista de Pouso e Decolagem .................................................................................................177 1.3. Tipos de Sinalização de Pista de Rolamento ou Táxi.............................................................188 1.4. Exercício – Sinalização Horizontal de Pista P/D.....................................................................192 AULA 04.............................................................................................................................................195 1. Acessos Terrestres e Estacionamentos.....................................................................................195 1.1. Parâmetros para o Dimensionamento dos Estacionamentos de Automóveis em Aeroportos Brasileiros..........................................................................................................................................195 1.2. Introdução.............................................................................................................................196 1.3. Composição da Amostra do Estudo ......................................................................................198 1.4. Escolha Modal e Demanda de Autos nos Estacionamentos dos Aeroportos Hercílio Luz e Salgado Filho .....................................................................................................................................199 1.5. Taxas de Utilização dos Estacionamentos.............................................................................205 1.6. Modelos de Regressão Linear para os Aeroportos ...............................................................205 1.7. Conclusões.............................................................................................................................206 1.8. Referências Bibliográficas .....................................................................................................208 AULA 05.............................................................................................................................................210 HELIPORTOS E HELIPONTOS..............................................................................................................210
  • 11.
    Aeroportos Apostila de Aeroportos AULA01 1. Introdução à Organização do Transporte Aéreo 1.1. Espaço Aéreo • Primeiras controvérsias: ascensões de balões (Paris-1784) Século XIX – debates: 1903 Irmãos WRIGHT – Colocam em vôo um engenho mais pesado do que o Ar. 1906 SANTOS DUMONT – França – Primeiro Aeroplano. 1917-1919 1ª Guerra Mundial – Aprimoramento técnico de aeronaves e da navegação aérea. 1919 Paris – Convenção para regulamentação da navegação aérea. 1927 Iniciou-se a aviação comercial brasileira. 1928 Sobre aviação comercial. 1929 Varsóvia – Sobre unificação de regras do transporte aéreo internacional. 1933 Roma – Sobre unificação de regras sobre apreensão cautelar de aeronaves. 1944 Chicago – Sobre aviação civil internacional. Convenção mais importante. 1941-1945 2ª Guerra Mundial 1948 Genebra – Reconhecimento internacional de direitos em aeronaves de transporte aéreo. 1952 Roma – Sobre danos de aeronaves estrangeiras a terceiros, na superfície. 1958 Genebra – Sobre direito internacional em alto-mar. 1961 Guadalajara. 1963 Tókio – Sequestros. 1970 Hague - Sequestros 1971 Montreal – Sequestros. 1.2. Princípios Gerais • Princípio fundamental Soberania sobre espaço aéreo.
  • 12.
    Aula 02 –Aeroportos Apostila de Aeroportos • Espaço Aéreo Acima do território do país e respectivas águas jurisdicionais. • Cinco Liberdades do Ar: 1. Uma aeronave tem direito de sobrevoar outro país, sem pousar, contanto que o país sobrevoado seja notificado antecipadamente e aprove o sobrevoo (Passagem inocente). 2. Uma aeronave civil de um país tem o direito de pousar em outro país por razões técnicas, tais como abastecimento ou manutenção, sem proceder a qualquer tipo de serviço comercial neste ponto de parada (Parada Técnica). 3. Uma empresa aérea tem o direito de carrear o tráfego de seu país de registro para outro. 4. Uma empresa aérea tem o direito de carrear o tráfego de um país para o seu país de registro. 5. Uma empresa aérea tem o direito de carrear tráfego entre dois países diferentes do seu país de registro, desde que o vôo origine ou termine no seu país de registro. Ainda: 6. Uma empresa aérea tem o direito de carrear tráfego que não se origine ou termine no seu país de registro, desde que passe através, faça conexão ou permaneça, por um tempo limitado, em qualquer ponto de seu país de registro. Existem, porém são raramente permitidos: 7. Uma empresa aérea tem o direito de operar inteiramente fora de seu país de registro carreando tráfego entre outros países. 8. Uma empresa aérea tem direito de carrear tráfego de um ponto para outro do mesmo país estrangeiro. 1.3. Organizações Internacionais de Regulamentação da Aviação Civil 1.3.1. Internacional Civil Aviation Organization – ICAO • Criada em abril de 1947 • As recomendações e padronizações foram agrupadas em 17 anexos técnicos (Anexo 14 é o mais importante) • Administrada por um conselho e várias comissões e órgãos subsidiários, subordinados pela assembléia geral. • Filiada à ONU
  • 13.
    Aula 02 –Aeroportos Apostila de Aeroportos • Sede em Montreal (Canadá) e mais sedes regionais (Lima-Perú) 1.3.2. Internacional Air Transport Association - IATA • Criada em abril de 1945 em Havana; • Agrupamento de empresas de transporte aéreo com a finalidade de coordenar as atividades de taxações tarifárias, visando uma exploração segura, eficaz e econômica; • Dois escritórios centrais: Montreal e Genebra, mais sedes regionais (Rio de Janeiro); 1.3.3. Federal Aviation Administration - FAA • Do governo norte-americano; • Subordinada ao USDOT (www.dot.gov , WWW.faa.gov); • Regulamentos e circulares técnicas sobre aeronaves, tripulação, espaço e tráfego aéreo, navegação, administração e aeroportos; 1.3.4. Ministério da Aeronáutica do Brasil • Criado em 1941 (www.maer.mil.br) • Estrutura: o Órgãos de direção geral; o Órgãos de direção setorial (DAC – Departamento de Aviação Civil; IAC – Instituto de Aviação Civil); o Órgãos de assessoramento; o Órgãos de apoio; o Força Aérea Brasileira (FAB). 1.3.5. Comando da Aeronáutica do Brasil - COMAER • Criado em 1999 (www.fab.mil.br) • Parte do Ministério da Defesa • Estrutura: o Departamento de Controle do Espaço Aéreo - DECEA o Departamento de Aviação Civil – DAC (extinto com a criação da ANAC) 1.3.6.Agência Nacional de Aviação Civil - ANAC • Criada pela Lei nº 11.182, de 27 de setembro de 2005 (www.anac.gov.br).
  • 14.
    Aula 02 –Aeroportos Apostila de Aeroportos • Atuará como autoridade aeronáutica da aviação civil. • Missão – visa o atendimento do interesse público e o desenvolvimento e fomento da aviação civil, da infraestrutura aeronáutica e aeroportuária do País. • Estrutura: o Diretoria Colegiada (4 Diretores e o Diretor-Presidente). o Superintendências (em número de 6). o Gerências Regionais (em número de 8). 1.4. Legislação Nacional e Internacional • Anexo 14: Normas e Recomendações Internacionais – Aeródromos – ICAO Volume I: Aeródromos e Volume II: Helipontos. • Advisory Circular – FAA (Projeto de Pavimentos, Planejamento etc.). • Código Brasileiro de Aeronáutica – 1986 Lei 7.565 de 19/12/1986. • Portaria nº 256/GC5 de 13/05/2011 (Zona de Proteção de Aeródromos, Auxílios e Helipontos). • Resolução nº 158, de 13/07/2010 – Autorização prévia para construção de aeródromos. • RBAC 154 – Regulamento Brasileiro de Aviação Civil, ANAC, 2009. 1.5.Evolução do Transporte Aéreo Regular No Brasil • Origem da Aviação comercial Final da década de 20. (em 1º de janeiro de 1927, a primeira empresa no Brasil a transportar passageiros foi a CONDOR SYNDIKAT – Ministro Vitor Konder e outras pessoas – do Rio de Janeiro a Florianópolis). 1.5.1. Período de 1927 a 1939 • Desenvolvimento da indústria aeronáutica durante a 1ª guerra mundial. • Desejo ou espírito aeronáutico das autoridades governamentais brasileiras. • Em 1927 foi criado o código brasileiro do ar. • Em 1927 Criada a VARIG e a Sociedade Mercantil Sindicato CONDOR Ltda. (mais tarde CRUZEIRO DO SUL). • Em 1930 PANAIR do Brasil (faliu) • Em 1934 VASP
  • 15.
    Aula 02 –Aeroportos Apostila de Aeroportos 1.5.2. Período de 1939 a 1959 • Período de entrada de grande número de empresas, posterior fusão, absorção e eliminação devido a: a) Oferta de aviões excedentes da 2ª guerra mundial b) Aumento da demanda • Na última metade do período houve diminuição da demanda devido à abertura de estradas e instalação da indústria automobilística. • Em 1959 surgiu a ponte-aérea RIO – SP. 1.5.3. Período de 1961 a 1968 • Redução do número de passageiros transportados no mercado doméstico. • Crise financeira na indústria devido ao processo inflacionário e reforma cambial. • Busca de solução através de três encontros da CONAC – Conferência Nacional de Aviação Civil. 1.5.4. Período de 1969 a 1980 • Em 1975 – Fusão VARIG-CRUZEIRO. • Criação do SITAR – Sistema Integrado do Transporte Aéreo: desenvolvimento do transporte aéreo regional e incentivo à indústria aeronáutica brasileira (EMBRAER). • Surgem: TABA / NORDESTE / TAM / VOTEC / SUDESTE / RIO-SUL. 1.5.5. Período de 1981 a 1989 • Prejuízos até 1986 com a implantação do plano cruzado quando ocorreu aumento considerável da demanda. • Em 1986 foi realizada a 4ª CONAC. 1.5.6. Período de 1988 a 1998 • Durante o plano cruzado aumento da demanda. • Período inflacionário diminuição e crise. • Em 1992 – 5ª CONAC As regionais não precisam mais atuar em áreas específicas. • Em 1994 – Plano Real Aumento da demanda. 1.5.7. Período de 1998 a 2004 a) 2000 Criação da Gol
  • 16.
    Aula 02 –Aeroportos Apostila de Aeroportos b) TRANSBRASIL parou de operar dívida de combustível. c) TAM menos deficitária maior mercado doméstico. d) Atentado terrorista (11/09 EUA) com uso de aviões comerciais. e) Queda da Aviação Civil (Turismo). f) Intensificação da segurança nos aeroportos. g) Crise devido ao aumento do dólar desvalorização do Real. a) Recessão pessoas fazem menos viagens internacionais. 1.5.8. Período de 2005 • Julho de 2005 – entra em operação a empresa WEBJET, de modelo “low cost, low fare”. • Agosto de 2005 – começa a funcionar como empresa de voos regulares a empresa “BRA”, que antes operava somente com voos charter. • Em 20/07/2005 o mercado era dividido em: o TAM com 43% do mercado; o GOL com 29% do mercado; o VARIG com 26 % do mercado. • Características de uma empresa “low cost, low fare”: o não oferece milhagem o não oferece comida quente durante o vôo. O local dos fornos de aquecimento da comida é ocupado por assentos. o homogeneização da frota, o que barateia a manutenção. o mantém as aeronaves voando o maior tempo possível. o estimula compra de passagens pela internet, o que reduz gastos com papel e funcionários. • Setembro de 2005 - criação da ANAC – Agência Nacional de Aviação Civil (Lei nº 11.182 de 27/09/05). • VARIG entra em processo de recuperação judicial e vende a VarigLog (transporte de cargas) e VEM (manutenção) para TAP por US$62 milhões. A TAP ficou com a VEM por US$ 24 milhões e revendeu a VarigLog por US$48,2 milhões para Voo do Brasil (3 empresários brasileiros e o fundo americano Matlin Patterson).
  • 17.
    Aula 02 –Aeroportos Apostila de Aeroportos 1.5.9. Período de 2006 • Aumento da demanda em função da baixa do dólar. (valorização do Real) • Crise na Varig – dívida de aproximadamente 8 bilhões de reais. • Em julho de 2006 a Varig é dividida em antiga Varig (processo judicial, com as dívidas) e nova Varig (enxuta). • A VarigLog controlada pela Volo do Brasil compra a nova VARIG. • Ocorre acidente com avião da GOL na Amazônia (29/09/2006): houve choque com aeronave pequena (Legacy) – não há sobreviventes. • Crise nos aeroportos – ocorrência de grande atraso nos voos – filas enormes – descontentamento geral dos passageiros 1.5.10. Período de 2007 • Continua a crise nos aeroportos que culmina com a troca de Ministro da Defesa – novo ministro Nélson Jobim. • A Empresa GOL compra a nova VARIG em 28/03/2007 por US$320 milhões (R$660 milhões). Após a compra o mercado ficou dividido em: o Doméstico - TAM com 47,33%, GOL com 44,83%, o BRA 2,98%, OceanAir 2,24 % e Demais 2,62%. o Internacional - TAM com 61,01%, GOL com 30,76%, o BRA 7,89%, OceanAir 2,24 % e Demais 0,34%. • Ocorre acidente com avião da TAM (17/07/2007) no aeroporto de Congonhas em SP – em pista molhada avião sai da pista e se choca com posto de gasolina e hangar da TAM do outro lado da rua e explode – não há sobreviventes. • Agravamento da crise no transporte aéreo brasileiro leva a substituição dos Diretores da ANAC e também a criação da Secretaria de Aviação Civil do Ministério da Defesa para coordenar os órgãos da aviação civil brasileira (DECEA/ANAC/INFRAERO/Indústria Aeronáutica). 1.5.11. Período de 2008 • Total de PAX 2008 = 113,3 milhões • 65,5% dos assentos ocupados • Crescimento global 2,4% na comparação anual • Mercado doméstico (2,1%) – 100 milhões de PAX:
  • 18.
    Aula 02 –Aeroportos Apostila de Aeroportos o TAM – 50,4% o GOL/VRG – 42,4%, o OceanAir – 2,8% o WEBJET – 2,5%, o Azul (início da operação: Dezembro de 2008) – 0,3%. • Mercado Internacional (5,3%) – 13,3 milhões de PAX: o TAM – 75,2% o GOL – 23,9% • Características da nova CIA aérea: o Azul – Linhas Aéreas Brasileiras o Aeronaves EMBRAER o Frota em 2009: • 09 ERJ 190 (106 pessoas) • 05 ERJ 195 (118 pessoas) o Frota para 2010: • 21 ERJ o Frota para 2011: • 42 ERJ o Frota para 2013: • 78 ERJ o Equipadas com HUD (head up displays) para ambos os pilotos em 100% da frota. • Projeta as informações no vidro à frente dos pilotos. Aumenta a segurança operacional. o Base operacional em Campinas (Viracopos) 1.5.12. Período de 2009 • Acidente com avião da AIR FRANCE – AF 447 Rio-Paris: Airbus 330 sem sobreviventes (31/05). Não foram encontradas as caixas pretas. • Total de PAX 2009 = 128,1 milhões.
  • 19.
    Aula 02 –Aeroportos Apostila de Aeroportos • 66,8% dos assentos ocupados. • Crescimento global 13,1% na comparação anual • Mercado doméstico (15,0%) – 115 milhões de PAX: o TAM – 45,6% o GOL/VRG – 42,4%, o Web Jet – 4,5% o Azul – 3,8% o OceanAir – 2,5% • Mercado Internacional (-1,2%) – 13,1 milhões de PAX: o TAM – 86,5% o GOL – 13,4% 1.5.13. Período de 2010 • Fusão TAM com LANCHILE em Março de 2010 = LATAM. • LATAM • Voo para mais de 115 destinos em 20 países; • Frota combinada de 229 aviões; • 40.000 funcionários; • AVIANCA • Início das operações no Brasil. • Dados do transporte aéreo Brasileiro (ANAC/Jan2011) • Em 2010 a procura por voos domésticos aumentou 23,47% em relação a 2009. A demanda por voos internacionais aumentou 20,38% nas rotas internacionais operadas pelas empresas brasileiras. • Mercado doméstico: o TAM – 42,81% o GOL/VARIG – 39,51%, o Azul – 6,05% o Web Jet– 5,87% o Avianca – 2,59%
  • 20.
    Aula 02 –Aeroportos Apostila de Aeroportos o Trip – 2,21% REFERÊNCIAS: Sória, M. H. A., Silva, I. (1983) Introdução à organização do transporte aéreo, USP-São Carlos, apostila Agência Nacional de Aviação Civil – ANAC – Disponível em www.anac.gov.br INFRAERO – Disponível em www.infraero.gov.br
  • 21.
    Aula 02 –Aeroportos Apostila de Aeroportos AULA 02 1. Composição de Peso e Desempenho em Cruzeiro 1.1. Definições Componente do peso bruto Composto de 3 parcelas: • Peso Básico Operacional: peso do avião pronto para operar excluindo-se a carga paga e o combustível utilizável. Inclui estruturas, assentos, equipamentos diversos, tripulação, copas, enfim, tudo que não seja carga paga e combustível. • Carga paga: toda carga transportada que produz receita. Compõe-se de passageiros, bagagem, correio e carga. • Combustível total: compreende combustível de bloco mais reservas. Reserva inclui: o 10% do combustível a se consumir na viagem, para cobrir eventuais diferenças de consumo durante o vôo; o Combustível para o vôo até o aeroporto alternativo; o Combustível para espera, para pelo menos 30 minutos de vôo sobre o aeroporto a 450 m de altitude, ou de acordo com outro regulamento aplicável. 1.1.1. Limitantes estruturais • Peso máximo zero combustível: peso máximo que pode ter a aeronave carregada, porém sem combustível. • Carga paga máxima estrutural: é o máximo peso que pode ter a carga paga, seja ela passageiro, carga, correio ou combinação desses itens. • Peso máximo estrutural de decolagem: peso máximo com qual a aeronave pode decolar supondo-se que não exista limitante operacional, que na realidade existem por razões estruturais. • Peso máximo estrutural de pouso: é o peso máximo com qual a aeronave pode pousar (supondo-se que não existam limitantes operacionais). • Peso máximo estrutural de rampa ou de taxi: é o máximo peso pelo qual a aeronave poderá iniciar o taxi, ou seja, sair dos calços para dirigir-se até a cabeceira da pista.
  • 22.
    Aula 02 –Aeroportos Apostila de Aeroportos • Capacidade máxima dos tanques: é o máximo volume de combustível que o avião admite. 1.1.2. Limitantes operacionais • Peso máximo de decolagem: sempre menor ou igual ao peso máximo estrutural de decolagem. Imposto pelo comprimento e declividade da pista, temperatura, pressão, vento, pneus, condições de subida, condições de frenagem e outras. • Peso máximo de pouso: sempre menor ou igual ao peso máximo estrutural de pouso. Imposto pelas condições reinantes no pouso, principalmente o comprimento e a declividade da pista além do estado da superfície da pista. 1.2. Definições dos Pesos, Segundo Manuais do Airport Planning (Boeing 747 – 1984) • Peso máximo de táxi, de projeto (PMT): máximo peso para manobras no solo, limitado pela resistência da aeronave e requisitos de aero-navegabilidade. • Peso máximo de pouso, de projeto (PMP): máximo peso para pouso, limitado pela resistência da aeronave e requisitos de aero-navegabilidade. • Peso máximo de decolagem, de projeto (PMD): máximo peso para a decolagem, limitado pela resistência e condições de aero-navegabilidade. • Peso de operação vazio (POV) ou Peso básico operacional (PBO): peso da estrutura, grupos motopropulsores, mobiliário etc. Excluindo-se combustível usável e a carga paga. • Peso máximo zero combustível, de projeto (PMZC): máximo peso permitido, acima do qual só se pode carregar o avião com combustível usável. • Carga paga máxima = peso máximo zero combustível – peso de operação vazio. • Capacidade máxima de assentos: número máximo de passageiros especificamente homologados ou previstos para homologação. • Volume máximo de carga: espaço disponível para a carga. • Combustível usável: combustível disponível para a propulsão da aeronave.
  • 23.
    Aula 02 –Aeroportos Apostila de Aeroportos 1.3. Desempenho em Cruzeiro Observar a FIGURA 2.01 – Curva Carga Paga Versus Alcance. • Existe um limitante máximo para a carga paga, por razões estruturais. Teoricamente a carga paga máxima estrutural é dada pela diferença entre o peso zero combustível e o peso vazio de operação (ou peso básico operacional); LINHA C1-1. Nesta linha o avião decola com peso bruto menor que o máximo estrutural de decolagem. • A etapa mais longa que se pode fazer com a carga máxima é obtida quando se decola com o peso máximo estrutural de decolagem; PONTO 1. • A partir do ponto 1 não é possível aumentar o peso de decolagem, que já é o máximo estrutural. Para aumentar a etapa, de A1 a A2, deve-se ter mais combustível, e por isso, menos carga. LINHA 1-2. Troca-se carga por combustível. • Se a aeronave fosse carregada com a carga máxima estrutural e todo o combustível possível (capacidade máxima dos tanques) excederia o peso máximo estrutural de decolagem. Isto é, com os tanques cheios, mesmos que decole com o peso máximo estrutural de decolagem, a carga paga será menor que a máxima. PONTO 2.
  • 24.
    Aula 02 –Aeroportos Apostila de Aeroportos • Decolando-se com os tanques cheios, a etapa será maior à medida que se diminuir a carga. LINHA 2-A3. Pra decolagem com os tanques cheios e sem carga, ter-se-á o máximo alcance vazio. PONTO A3. • Há aviões que têm ainda uma limitação de carga imposta pelo peso máximo de pouso que terá ao chegar ao aeroporto de destino. Isto ocorre principalmente nos aviões de carga, que tem as estrutura reforçada de modo que o peso zero combustível é próximo do peso máximo de pouso. Ao chegar ao aeroporto de destino, a carga que pode estar levando deve ser tal que o peso zero combustível mais o combustível de reserva não ultrapassem o peso máximo estrutural de pouso. A LINHA 4-5 representa essa situação. • A curva será C1-4-5-2-A3. 1.4. Pontos Notáveis C1 – carga paga máxima estrutural A1 – máxima distância que se pode voar levando-se a carga paga máxima; peso de decolagem máximo estrutural. C2 – máxima carga que se pode levar, decolando com o peso máximo de decolagem e com os tanques cheios. Notar que C2 <C1. A diferença é o combustível para se voar um pouco mais longe, de A1 para A2. A2 – máxima distância que se pode voar, decolando com os tanques cheios e peso máximo estrutural de decolagem. A3 – máximo alcance vazio: máxima distância que se pode voar sem carga paga e tendo decolado com tanques cheios. 2. Nomenclatura Utilizada São termos ou símbolos que tem grande uso no desenvolvimento de trabalhos no campo aeroportuário. • A/C: “aircraft”, aeronave; • Acostamento: faixa lateral nas pistas ou pátios com revestimento tal que evite a ingestão pelas turbinas de materiais sobre o solo e adequado ao tráfego eventual de veículos; • Altitude: a elevação do ponto mais alto das pistas de pouso e decolagem; • Área de Manobras: composta pelas partes de aeródromo utilizadas para decolagem, o pouso e o rolamento da aeronave excluindo os pátios;
  • 25.
    Aula 02 –Aeroportos Apostila de Aeroportos • Área de Movimento: composta pela área de manobras e os pátios, também chamados de “airside”; • Bags: “baggages”, bagagens; • “Clearway”, Zona Desimpedida: área retangular, sob o controle da administração do aeródromo e preparada de forma a permitir o sobrevoo das aeronaves na fase inicial de subida, durante a decolagem; • Declividade: inclinação que o terreno preparado (pavimento) deve dispor garantindo um rápido escoamento das águas pluviais e prejudicando o mínimo possível o rolamento da aeronave, são padronizados conforme a categoria da pista; • Hora-Pico: momento em que a movimentação de determinado setor ou do todo se apresenta em sua maior intensidade. Para o projeto, não se considera como hora- pico o período em que tenha ocorrido um máximo eventual; • Incinerador: equipamento imprescindível nos aeroportos que realizam o reabastecimento da comissária de aeronaves e nos aeroportos internacionais (para a queima dos restos de alimentação); • IFR: “Instrument Flight Rules”, regras de vôo por instrumentos; • Infraestrutura: (aeronáutica) o aeroporto e demais equipamentos de suporte da navegação aérea; (aeroportuária) o suporte que promove a subexistência do aeroporto; • Pátio: área do aeródromo a céu aberto, destinada ao estacionamento de aeronaves com o proposto de se efetuar serviços de embarque e desembarque de passageiros, carga e descarga de bagagens, carga e correio, de reabastecimento de combustível e de outras necessidades, ou para manutenção; • Pax: passageiros; • Pistas: áreas que possibilitam rolamento e corrida para a decolagem, pouso, frenagem e rolamento até a parada de aeronaves; • Plano Diretor: conjunto de plantas e relatórios que dispõem o desenvolvimento físico da obra, no tempo, de forma que se atenda a seus objetivos; • RVR: “runway visual range”, alcance visual horizontal da pista, mede a visibilidade horizontal; • Zona de Parada: “stopway”, área retangular definida sobre o solo, com o início na extremidade da pista e se estendendo na direção da decolagem, preparada adequadamente para permitir a passagem eventual da aeronave;
  • 26.
    Aula 02 –Aeroportos Apostila de Aeroportos • TECA: Terminal de cargas; • Temperatura de Referência: temperatura determinada para um aeródromo correspondente à média das máximas diárias do mês mais quente (aquele que tem a maior média das médias diárias); • TPS, TEPAX: Terminal de passageiros; • Teto: visibilidade vertical, altura das nuvens; • Vento: fator importante nas operações de pouso e decolagem. Favorável quando ocorre na mesma direção, mas em sentido contrário; • VFR: “Visual Flight Rules”, regras de vôo visuais; • Zoneamento: atribuição de áreas para tarefas específicas tornando mais eficiente a movimentação geral e o desenvolvimento das atividades. 3. Classificações Para o atendimento das mais diversas finalidades foram criadas várias classificações de aeroportos e/ou pistas: 3.1. Segundo a 1019 Para efeito de projeto e construção de aeródromos, deverão ser observadas as seguintes bases de correlação entre os parâmetros comprimento mínimo de pista (metros) e largura mínima (em metros): A – 2100 e 45 B – 1500 e 45 C – 900 e 30 D – 750 e 23 E – 600 e 18 3.2.Operacional Segundo o Anexo XIV da ICAO (5) temos: 3.2.1. Pista de Pouso por Instrumentos Destinada à operação de aeronaves utilizando auxílios não visuais e compreendendo: • Pista de Aproximação por Instrumentos – servida por um auxílio não visual e possuindo pelo menos orientação direcional adequada a uma aproximação reta; • Pista de Aproximação de Precisão – CAT 1 – servida por auxílios de aproximação ILS ou GCA e auxílios visuais, destinadas a operações até uma altura de decisão de 60m (200 pés) e um RVR de até 800m (2600 pés);
  • 27.
    Aula 02 –Aeroportos Apostila de Aeroportos • Pista de Aproximação de Precisão – CAT II – altura de decisão de 30m (100 pés) e um RVR de até 400m (1300 pés); • Pista de Aproximação de Precisão – CAT III – não sendo aplicável altura de precisão e Com auxílios visuais destinada a operar com RVR de até 200m (700 pés) – A; Com auxílios visuais destinada a operar com RVR de até 50m (150 pés) – B; Destinada a operar sem auxílios visuais, com radar – C. 3.2.2. Pista para Pouso sem Instrumentos Destinada a operação de aeronaves usando procedimentos para aproximação visual. 3.3. ICAO A partir de 1983, a classificação adotada pela ICAO tem composição alfanumérica. O Anexo XIV (“Aerodromes”) estabelece quase todos os requisitos geométricos em função dessa classificação. Tabela 1: Classificação ICAO Código Comprimento de pista de Referência (m) Código Envergadura (m) Distância entre os bordos externos do trem Principal (m) 1 Menos de 800 A Menos de 15 Menos de 4,5 2 800 até 1199 B 15 a 23 4,5 a 5,9 3 1200 até 1799 C 24 a 35 6,0 a 8,9 4 mais de 1800 D 36 a 51 9,0 a 14,0 E 52 a 60
  • 28.
    Aula 02 –Aeroportos Apostila de Aeroportos Tabela 2: Relacionamento entre Característica da Aeronave e do Aeroporto Característica Física do Aeroporto Característica da Aeronave Comprimento de Pista Potência / Peso e Projeto da Asa Largura de Pista Bitola e envergadura Largura de Taxi Bitola e envergadura "Fillets"1 Base Largura do Acostamento Posição do motor externo Separações entre aeronaves Envergadura e comprimento Gradiente de Pista Trem de pouso e velocidade no solo Pontes Peso Pavimento Peso e Trem de pouso Posições de Estacionamento Envergadura Característica dos Equipamentos Característica da Aeronave Pontes de Embarque Altura da Porta Balizamento Posição do piloto e Altura do motor Hidrantes de Combustível Ponto de Abastecimento Energia Elétrica Ponto de Alimentação Ar Condicionado Ponto de Alimentação Equipamentos de Combate a Incêndio Característica da Aeronave Quantidade de Agente Comprimento e Largura da Fuselagem Número de veículos Comprimento e Largura da Fuselagem PBO = Peso Básico Operacional. PMD = Peso Máximo de Decolagem. REFERÊNCIAS: Sória, M. H. A. (1983) Composição de peso e desempenho em cruzeiro, USP-São Carlos, apostila 1 Fillets: Preenchimento feito nas curvas entre pista de pouso e decolagem com a pista de táxi para evitar que as rodas da aeronave não saiam do pavimento. Tabela 3: Distribuição de Peso para Algumas Aeronaves de Transporte que operam no Brasil Aeronave Peso máx. de Decol. (Kgf.) Fração PBO / PMD Faixa de Alcance (Km) BOEING 747-200B 356000 0,49 8704 BOEING 727-200 86860 0,51 3704 BOEING 737-200 52620 0,50 2963 FOKKER F.27 11250 0,62 1296 BANDEIRANTE 5670 0,63 1296
  • 29.
    Aula 03 -Aeroportos Apostila de Aeroportos 29 AULA 03 1. Introdução à Mecânica de Locomoção do Avião 1.1. O Avião O avião é um veículo que voa graças à força de sustentação obtida pelo efeito dinâmico das asas sobre o ar, ou seja, pela ação mútua de forças entre o ar, fluido e o avião, corpo em movimento. 1.2. Componentes • Asas (fixas) que geram as forças de sustentação para o vôo. FIGURA 3.01 – Tipos de asas. • Superfícies móveis (elerões, elevadores, lemes, flapes) para controlar a atitude da aeronave. • Sistema propulsor para fornecer tração ou empuxo necessário ao deslocamento no ar. • Fuselagem: corpo que liga estruturalmente as outras partes do avião e abriga a tripulação, carga, passageiros, sistema de controle, instrumentos e sistema de trem de pouso.
  • 30.
    Aula 03 -Aeroportos Apostila de Aeroportos 30 FIGURA 3.02 – Avião: Nomenclatura e principais dimensões. FIGURA 3.03 - Tipos de fuselagens 1 - para vôo subsônico 2 - para vôo supersônico 3 - para vôo subsônico e grande capacidade de carga 4 - para vôo supersônico e alta capacidade de manobra 5 – Hidroavião 6 - para vôo hipersônico.
  • 31.
    Aula 03 -Aeroportos Apostila de Aeroportos 31 1.3. Noções de Mecânica de Vôo Um Corpo imerso num fluido está sujeito a: Forças Normais – Pressão Forças Tangenciais – Atrito Resultante: dividida em dois componentes (admitindo-se que não haja força lateral) • 1ª - De Sustentação atua na direção ortogonal à da velocidade. Sustenta o avião em vôo. • 2ª - De Arrasto em direção paralela à velocidade. Deve ser vencida pela tração dos motores. 1.3.1. Aerofólios • Partes do avião destinadas a produzir sustentação (mas que geram também arrasto) como as asas, estabilizadores, hélices e outras. Tem forma achatada, alongada e perfil típico. 1.3.1.1. Forças que atuam sobre a superfície de um aerofólio • Forças Normais: de pressão em reação à pressão do escoamento livre. • Forças Tangenciais: de atrito e cisalhamento. • Forças de Pressão: devidas às diferenças de velocidade no dorso e no ventre do aerofólio. o No dorso (superfície de cima) a velocidade de escoamento é maior que a do escoamento livre, aparecendo, portanto uma Pressão Negativa. o No ventre a velocidade de escoamento é menor que a do escoamento livre, acarretando uma Pressão Positiva. o A Pressão Negativa do dorso e Positiva no ventre são responsáveis pela força de sustentação e por parte da força de arrasto (arrasto de pressão ou de forma). o Devido ao escoamento do ar em contato com o aerofólio aparecem as forças tangenciais. o O ar incidindo tangencialmente ao corpo sofre uma desaceleração na região de contato fazendo aparecer uma força. • Os vetores paralelos à superfície do aerofólio representam as forças de atrito por unidade de área que agem essencialmente na direção paralela ao escoamento, chamado de arrasto de atrito. RESULTANTERESULTANTERESULTANTERESULTANTE
  • 32.
    Aula 03 -Aeroportos Apostila de Aeroportos 32 FIGURA 3.04 – Escoamento. ESCOAMENTO VÔO v v Ângulo de Ataque DOWNWASH FIGURA 3.05 – Esforços. Pressão (Relativa) negativa VÔO v Pressão (Relativa) positiva Esforço de Cisalhamento FIGURA 3.06 - Forças de Sustentação e Arrasto. Ângulo de Ataque VÔO v D ARRASTO (Força) SUSTENTAÇÃO (Força) L FORÇA RESULTANTE Nota: Unicamente no caso particular do vôo em nível, ter-se a o escoamento e o arrasto na horizontal e a sustentação na vertical. Vôo em nível não implica forçosamente corda na horizontal ou qualquer outra atitude particular da aeronave.
  • 33.
    Aula 03 -Aeroportos Apostila de Aeroportos 33 1.3.1.2. Elementos do Aerofólio e do Seu Perfil • Velocidade Aerodinâmica: é a velocidade de escoamento do ar em relação ao aerofólio, fora da zona de perturbação por ele causada. • Corda Geométrica: linha de referência do perfil. Medida da largura do aerofólio. • Ângulo de Ataque: ângulo entre a corda e a velocidade aerodinâmica. • Área ou Superfície Alar: é a área em projeção no plano das cordas, que é usado como referência. • Alongamento: é a medida da forma do aerofólio no plano das cordas. É dado por: ( ) )gulartanreasa/p( Corda aEnvergadur A alarSuperfície aEnvergadur A 2 = = • Perfil: é a forma da seção transversal do aerofólio na direção do escoamento e em plano perpendicular ao plano das cordas. Assim, as características de sustentação e arrasto dependem fundamentalmente do Perfil. (ver figura 3.07) FIGURA 3.07 - Aerofólio.
  • 34.
    Aula 03 -Aeroportos Apostila de Aeroportos 34 1.3.1.3. Quantidade das Forças que Atuam em um Aerofólio s.q D C s.q L C DL == CL: Coeficiente de Sustentação (adimensional) CD: Coeficiente de Arrasto (adimensional) L: Sustentação (força) D: Arrasto (força) q: Pressão Aerodinâmica 2 v.. 2 1 ρ= s: Área de referência. Para as asas Superfície alar. Então: s.v.. 2 1 .CD s.v.. 2 1 .CL 2 D 2 L ρ= ρ= No Sistema MKS: D,L em Kgf. S em m² V em m/s ρ em Kgf.m-1.s² (UTM / m³) No Sistema Internacional – SI D,L em N S em m² V em m/s ρ em Kg/m³ As curvas características dos perfis são obtidas experimentalmente e podem ainda ser dadas para um determinado alongamento (A). São apresentadas como na Figura 3.08. ρ : Massa específica do ar (massa / volume) v: Velocidade aerodinâmica(velocidade)
  • 35.
    Aula 03 -Aeroportos Apostila de Aeroportos 35 FIGURA 3.08 COORDENADAS EM % DA CORDA E DESENHO DO PERFIL N.A.C.A. 23012
  • 36.
    Aula 03 -Aeroportos Apostila de Aeroportos 36 DETALHE DO BORDO DE ATAQUE ADAPTADO DO REPORT Nº 669 DA NATIONAL ADVISORY COMMITTE FOR AERONAUTIC, N.A.C.A., U.S.A. Pode-se também expressar o coeficiente CD em função do CL na curva conhecida como Polar do Perfil, na qual se tira o maior valor da relação CL / CD e o respectivo ângulo de ataque. 1.3.2. Forças que Atuam no Avião Apesar de a sustentação ser produzida pelas asas, todo avião sofre arrasto. Arrasto Total = Asas + Fuselagem + Lemes + Estabilizadores + Trem de pouso O que se deseja é um coeficiente de arrasto associado a uma superfície de referência, de modo que as expressões para o arrasto sejam: RD 2 S.C.v.. 2 1 D ρ= CD: Coeficiente de arrasto dado em função de determinada superfície de referência. SR: Superfície usada como referência. CORDA DORSO VENTRE 0,0 - 0,00 1,3 2,67 -1,23 2,5 3,61 -1,71 5,0 4,91 -2,26 7,5 5,80 -2,61 10,0 6,43 -2,92 15,0 7,19 -3,50 20,0 7,50 -3,97 25,0 7,60 -4,28 30,0 7,55 -4,46 40,0 7,14 -4,48 50,0 6,41 -4,17 60,0 5,47 -3,67 70,0 4,36 -3,00 80,0 3,08 -2,16 90,0 1,68 -1,23 95,0 0,92 -0,70 100,0 -0,13 (-0,13) 100,0 - 0,00
  • 37.
    Aula 03 -Aeroportos Apostila de Aeroportos 37 FIGURA 3.09 – Superfície de referência para estimativa do arrasto: Fuselagem. 1.3.2.1. Eficiência Aerodinâmica Parâmetro de grande importância para expressar o desempenho aerodinâmico do avião, ou também chamada de Razão Sustentação / Arrasto. D L totalD asaL total asa C C Etesimplesmenou C C D L E === , , A eficiência aerodinâmica de um determinado avião depende do N° de Reynolds (Rey) e de Mash (M). Para Rey e Mash constantes será em função do ângulo de ataque. Nos aviões subsônicos a eficiência máxima está tipicamente entre 10 e 25, enquanto que nos aviões supersônicos é da ordem de 5 a 10. 1.3.2.2. Força de Tração e Potência Necessária ao Vôo O grupo Moto-Propulsor fornece a força para acelerar o avião e mantê-lo em vôo, contrariando o arrasto. Nos motores o pistão costuma dar potência em HP, para os Turbo-Hélices em HP equivalentes, enquanto que nos Turbo-Jatos e Turbo-Fans não se fala em potência, mas sim em tração (força). A potência média necessária para o vôo é dada pela seguinte expressão: Potência = Força de Tração x Velocidade Aerodinâmica Para o vôo retilíneo em nível com a velocidade constante, como já foi mostrado, a tração deve ser igual ao arrasto e a potência será: P = D.V
  • 38.
    Aula 03 -Aeroportos Apostila de Aeroportos 38 FIGURA 3.10 – Duas condições limites do vôo retilíneo em nível. Velocidade grande, ângulo de ataque pequeno Baixa velocidade, ângulo de ataque grande FIGURA 3.11a – Forças: Vôo não acelerado, em um plano horizontal (ou em nível) (supondo-se que não haja forças laterais). PESO W FORÇA ESTABILIZADORA ARRASTO D T TRAÇÃO SUSTENTAÇÃO L
  • 39.
    Aula 03 -Aeroportos Apostila de Aeroportos 39 FIGURA 3.11b ARRASTOTRAÇÃO SUSTENTAÇÃO L PESO W L = W T = D T D 1.3.2.3. Estol Avião em velocidade mínima ângulo de ataque grande CL máximo. o O avião voando com CLmáx tem um aumento do ângulo de ataque (proporcional ou acidental). o Com o ângulo de ataque maior que 2 x CLmáx há uma perda de sustentação e o avião começa a cair. o Pelo fato do avião ter o centro de massa convenientemente localizado e pelas forças de arrasto nessa situação aplicados atrás do centro de massa, durante a queda apontará o nariz para baixo. o Adquire assim, situação de vôo descendente com ângulo de ataque menor que CLmáx e poderá gradativamente voltar ao vôo em nível. o Para recuperar a condição de vôo perde-se altura, que depende das características do avião e é geralmente significativa. Deve-se evitar o estol nos voos normais.
  • 40.
    Aula 03 -Aeroportos Apostila de Aeroportos 40 FIGURA 3.12 – Duas condições limites do vôo retilíneo em nível. o Velocidade grande, ângulo de ataque pequeno Baixa velocidade, ângulo de ataque grande W = 5000 kgf [49035 N] ρ = 0,092 kgf m-4 s² [0,90 kg/m³] Asa = perfil NACA 23012 S = 30 ² Para V = 400 km/h (velocidade máxima) Tem-se CL = 0.30 e portanto α = 3º Nota: Essa é a situação de velocidade máxima, limitada pela potência disponível, para esse ρ. Para CL =1,55 (CLmáximo) e portanto α = 21º tem-se: V= 48,35 m/s = 174 km/h Nota: Essa é a situação de velocidade mínima (CLmáximo) para esse ρ. REFERÊNCIAS: Sória, M. H. A. (1983) Introdução à mecânica de locomoção do avião, USP-São Carlos, apostila
  • 41.
    Aula 05 -Aeroportos Apostila de Aeroportos 41 AULA 04 1. Dimensionamento do Comprimento De Pista 1.1. Comprimento de Pista • Iniciada a decolagem, abortar e parar com segurança; • Completar a decolagem e iniciar a subida, também com segurança. Observar as figuras 4.01 e 4.02. FIGURA 4.01 – Decolagem com falha de 1 motor em V1. A V1 VR B C VLOF V2 10.70m ZYX L/2 CORRIDA DE DECOLAGEM DIST. DE ACELERAÇÃO E PARADA DIST. DE DECOLAGEM D L , FIGURA 4.02 – Decolagem com todos os motores (sem falha). A VR V2 10.7m d'1 d'2 X' Z' VLOF 1. Estando o avião parado na cabeceira da pista, ponto A, o piloto imprime toda a potência aos motores e o avião inicia a corrida de decolagem. 2. Se uma falha de um motor com perda súbita e total de potência for identificada pelo piloto exatamente ao atingir a velocidade de decisão V1, deve ele escolher uma dentre as duas alternativas: interromper ou continuar a decolagem.
  • 42.
    Aula 05 -Aeroportos Apostila de Aeroportos 42 o Se o piloto decidir frear, o avião correrá na pista até parar no ponto Y. A distância AY é chamada de “distância de aceleração e parada”. o Se decidir continuar a decolagem com um motor inoperante, o avião acelerará até atingir a velocidade de rotação, VR (ponto C) com a qual é possível erguer o nariz da aeronave aumentando o ângulo de ataque e ao alcançar a velocidade de decolagem, VLOF e iniciar o vôo, ponto D, vindo a passar sobre o ponto Z com uma altura de 10,70m e velocidade igual ou maior que V2. A distância AZ é chamada “distância de decolagem”. 3. Se a falha de um motor ocorrer antes da velocidade V1 o piloto interromperá a decolagem aplicando os dispositivos de frenagem vindos a parar antes do ponto Y. A decolagem deve ser abortada porque a velocidade é insuficiente e não há condições de aceleração com a potência reduzida. 4. Se a falha ocorrer depois de atingida a velocidade V1,a decolagem deverá prosseguir e o avião sobrevoará o ponto Z com uma altura maior que 10,70m (35 pés). A decolagem deve continuar uma vez que o avião adquiriu velocidade suficiente e que seria difícil ou até impossível parar na distância disponível. 5. Se, como se dá normalmente, não ocorrer falha de motor, o avião correrá até atingir VR, VLOF e V2, decolando. Quando não há falha as distâncias para alcançar VR, VLOF e V2 são menores do que no caso de falha de um motor. 1.2. Definições • V1 - Velocidade de decisão: velocidade escolhida pelo operador à qual admite-se que, ao ser reconhecida pelo piloto uma perda súbita e total de potência de uma unidade motopropulsora, é possível frear o avião ou continuar a decolagem sem o motor crítico. • VR - Velocidade de rotação: velocidade à qual o piloto inicia a rotação da aeronave, levantando o nariz, tirando do chão as rodas do nariz. • VLOF - Velocidade para deixar o solo ou de decolagem: velocidade à qual se tira o avião da pista, isto é, inicia o Vôo propriamente dito sustentando-se no ar. (lift-off speed). • V2 - Velocidade de subida: velocidade mínima com a qual o piloto pode dar início à subida depois de Ter passado a 10,70m de altura sobre a superfície da pista durante uma decolagem com um motor inoperante. o Esta deve ser mantida até que o avião chegue a uma altura de 122 m (400 pés).
  • 43.
    Aula 05 -Aeroportos Apostila de Aeroportos 43 Num diagrama típico de velocidades na decolagem, entra-se com a pressão, temperatura e peso bruto de decolagem e tira-se VR, V2 e V1/VR. 1.3. Comprimento de Pista Balanceada FIGURA 4.03 – Comprimento de Pista Balanceada. • Quando Y e Z são coincidentes tem-se o comprimento de pista balanceada com falha de um motor. > V1 > distância de aceleração e parada. > V1 < distância de decolagem. V1 ou V1/VR dado no manual da aeronave. Fornece o comprimento de pista balanceado. 1.3.1. Decolagem sem Falha • Com todos os motores funcionando. • Corrida de decolagem é definida como 115% da distância para atingir VLOF + l/2. 1.3.2. Conclusões • O comprimento de pista de decolagem é o maior dentre: o Comprimento balanceado de pista o 115 % da distância de decolagem com todos os motores. • A corrida de decolagem é a maior dentre: o Distância para atingir VLOF + l/2, com falha em V1 o 115 % da distância para atingir VLOF + l/2 sem falha.
  • 44.
    Aula 05 -Aeroportos Apostila de Aeroportos 44 1.4. Comprimento da Pista para Pouso • O avião sobrevoa a cabeceira da pista passando à altura de 15m (50 pés), com velocidade constante igual a 1,3VS (1,3 velocidade de estol) para as condições de pouso. • O comprimento da pista para pouso é tal que a aeronave nestas condições pouse e pare em 60 % do comprimento de pista disponível para pouso. FIGURA 4.04 – Comprimento de pista para o pouso. 1.3 Vs 15m Avião Parado 0.4 L0.6 L COMPRIMENTO DE PISTA PARA POUSO - L É dado pelos manuais: depende do estado da superfície da pista, do peso bruto máximo para pouso, da pressão e temperatura do ar na pista, da posição dos flaps e funcionamento de certos dispositivos de frenagem. 1.5. Procedimento de Subida FIGURA 4.05 – Procedimento de Subida
  • 45.
    Aula 05 -Aeroportos Apostila de Aeroportos 45 2. Determinação do Comprimento de Pista Necessário – Desempenho na Decolagem 2.1. Determinantes do Comprimento de Pista Características do avião: • Capacidade de aceleração > relação potência peso < comprimento • Capacidade de alçar vôo Carga alar = relação área da asa por unidade de peso > carga alar < comprimento • Capacidade de frenagem depois de atingir determinada velocidade e a resistência dos pneus > capacidade Frenagem < comprimento Tendo-se: Um determinado avião e uma determinada pista “efetivamente” construída: • Qual é o máximo peso bruto que pode Ter o avião para decolar? • A pista é suficiente para se decolar com determinado peso bruto? Respostas: nos ábacos de desempenho do manual de operação da aeronave. O comprimento de pista necessário para a decolagem depende: • Do avião; • Da operação: o Do peso bruto de decolagem; o Das condições operacionais específicas como posição dos flapes, tipo de pneu, V1... • Da pista: o Declividade da pista; o Condições de atrito do pavimento. • Das condições atmosféricas; o Altitude (pressão) do aeródromo; o Temperatura do ar externo;
  • 46.
    Aula 05 -Aeroportos Apostila de Aeroportos 46 o Vento: direção e intensidade. Observar figura 2: são gráficos publicados nos manuais tipo “Airport planning”. Considera-se: • Pista em nível; • Vento zero; • Usa-se: atmosfera-padrão. tn = (15 – 0,0065 h) (graus centígrados) tn = temperatura na altitude h em grau centígrado h = altitude em m. 2.2. Fatores que Determinam o Comprimento de Pista para Decolagem • O avião e sua operação o Área alar, forma, superfície, volumes e potência das turbinas etc; o Peso bruto de decolagem. • Pressão (Altitude) < pressão do ar > altitude < densidade do ar A densidade do ar afeta o desempenho aeronáutico da aeronave e o desempenho dos motores. • Temperatura Afeta a densidade do ar e o rendimento térmico dos motores. • Vento A direção do vento faz certo ângulo com a pista. o 2 componentes do vento: paralela e transversal. o Componente transversal (de través): é prejudicial. o Componente longitudinal: - Auxilia a operação: quando se opera contra o vento. - Prejudica a operação: quando se opera a favor do vento, requer maior comprimento de pista. • Declividade: Declividade longitudinal de grandes aeródromos: até 1,5%.
  • 47.
    Aula 05 -Aeroportos Apostila de Aeroportos 47 2.3. Comprimento de Pista a Ser Construído O projetista deve trabalhar com as condições “médias” ou as “menos” favoráveis. • Temperatura de referência do aeródromo: Média mensal das temperaturas máximas diárias do mês mais quente do ano (aquele que tem a maior média mensal), feita para um período de vários anos. • Altitude: do ponto mais alto da área de pouso. • Vento: condições menos favoráveis que é o vento nulo. • Declividade: condições menos favoráveis = operação em subida.
  • 48.
    FIGURA 4.06 Trata-se deum ábaco tirado do manual de operações da aeronave. Apostila de Aeroportos FIGURA 4.06 – Desempenho na Decolagem se de um ábaco tirado do manual de operações da aeronave. Aula 05 - Aeroportos 48
  • 49.
    Aula 05 -Aeroportos Apostila de Aeroportos 49 • Informações necessárias: o Temperatura de referência do local o Altitude geométrica o Declividade média da pista • Entrada: o Peso bruto do avião (geralmente o máximo de decolagem) • Saída: o Comprimento de pista necessário. Manuais das aeronaves “BOEING” www.boeing.com/products/aircompat/plan_manual.html (download)
  • 50.
    Aula 05 -Aeroportos Apostila de Aeroportos 50 FIGURA 4.07 – Decolagem: Comprimento de Pista Necessário (F.A.R) BOEING 747-200 (JT9D-70) Nota: Condicionamento de Ar Desligados, Pista em Nível e Vento Zero.
  • 51.
    Aula 05 -Aeroportos Apostila de Aeroportos 51 3. Fatores de Correção (segundo ICAO) Adotado quando os dados de entrada não são adequadamente retratados pelo ábaco disponível. • Correção para altitude (fa) Adoção de um fator de acréscimo do comprimento de pista de decolagem de 7% para cada 300m de elevação. • Correção para a temperatura (ft) Adoção de um fator de acréscimo do comprimento de pista de decolagem de 1% para cada grau Centígrado que a temperatura de referência do local do estudo exceder a temperatura padrão do local (T). T=15°C - 0,0065 h h = altitude do local • Correção para a declividade (fd) Adoção de um fator de acréscimo do comprimento de pista de decolagem de 10% para cada 1% da declividade longitudinal da pista, obtida pela razão entre a diferença da cota máxima e cota mínima da pista pelo seu comprimento. CORREÇÂO GLOBAL (FG) FG = (1 + fa) x (1 + ft) x (1 + fd). Quando (1+fa) x (1+ft) resultar num acréscimo do comprimento de pista de decolagem de mais de 35% realizar um estudo especial. 4. Nomenclatura Conhecida • Distância de decolagem – TODA: A partir da imobilidade até atingir 10,7 m de altura, com falha de um motor 115% dela – sem falha • Distância de Rolagem de decolagem – TORA: A partir da imobilidade até atingir o ponto médio entre vlof e o ponto V2 onde atinge 10,7m de altura – com falha de um motor / 115% dela – sem falha Também conhecida como corrida de decolagem. • Distância de aceleração e parada – ASDA:
  • 52.
    Aula 05 -Aeroportos Apostila de Aeroportos 52 A partir de Imobilidade até a velocidade de falha de um motor, com ocorrência imediatamente antes de V1 e desacelelar a aeronave até a imobilidade novamente. A diferença entre TODA e Tora é a extensão do CLEARWAY necessário para a operação de decolagem. Quando ASDA > TORA, a diferença entre ASDA e TORA representa, para cada V1, a extensão do STOPWAY necessário. 5. Pistas de Pouso / Decolagem 5.1. Código de Referência do Aeródromo O objetivo do código de referência é proporcionar um método simples para relacionar entre si as numerosas especificações relativas às características do aeródromo, de modo a prover uma série de instalações aeroportuárias compatíveis com os aviões destinados a operar no aeródromo. O código é composto de dois elementos que se relacionam com as características e dimensões da aeronave. O elemento 1 é um número baseado no comprimento da pista de pouso/decolagem de referência do avião e o elemento 2 é uma letra baseada na envergadura do avião e na distância externa entre as rodas do trem de pouso principal. CÓDIGO DE REFERÊNCIA DO AERÓDROMO ELEMENTO 1 DO CÓDIGO ELEMENTO 2 DO CÓDIGO NÚMERO DO CÓDIGO (1) COMPRIMENTO DA PISTA DE REFERÊNCIA DO AVIÃO (2) LETRA DO CÓDIGO (3) ENVERGADURA (4) MEDIDA EXTERIOR ENTRE AS RODAS DO TREM DE POUSO PRINCIPAL 1 Menos 800m A Até 15m (exclusive) Até 4,5m (exclusive) 2 De 800m até 1.200m (exclusive) B De 15m até 24m (exclusive) De 4,5m até 6m (exclusive) 3 De 1.200m até 1.800m (exclusive) C De 24m até 36m (exclusive) De 6m até 9m (exclusive) 4 De 1.800m em diante D De 36m até 52m (exclusive) De 9m até 14m (exclusive) E De 52m até 65m (exclusive) De 9m até 14m (exclusive) F De 65m a 80m (exclusive) De 14m a 16m (exclusive)
  • 53.
    Aula 05 -Aeroportos Apostila de Aeroportos 53 5.2. Largura da Pista de Pouso / Decolagem A largura das pistas de pouso/decolagem não deverá ser menor do que a dimensão apropriada especificadas na tabela a seguir. NÚMERO DO CÓDIGO LETRA DO CÓDIGO A B C D E F 1° 18m 18m 23m - - - 2° 23m 23m 30m - - - 3° 30m 30m 30m 45m - - 4° - - 45m 45m 45m 60m * A largura das pistas de aproximação de precisão não deverá ser menor do que 30m, quando o numero do código for 1 ou 2. rbac_154.pdf página da “ANAC” (Regulamento Brasileiro da Aviação Civil – Resolução nº 93, de 11 de Maio de 2009). REFERÊNCIAS: Sória, M. H. A. (1983) Comprimento de pista – Partes 1 e 2, USP-São Carlos, apostila
  • 54.
    Aula 05 -Aeroportos Apostila de Aeroportos 54 AULA 05 1. Configuração Do Aeroporto A configuração do aeroporto depende da forma, do tamanho e do sítio disponível bem como de algumas considerações operacionais. • Configuração de Pistas de Pouso e Decolagem o Orientação o Quantidade • Pistas de Táxi o Pistas de táxi-saída o Pátios de espera o Evolução do sistema de pistas de táxi • Localização do Pátio de Aeronaves / Área Terminal • Terminal de passageiros • Modo de estacionamento de aeronaves • Terminal de Carga • Instalações de Apoio 1.1. Configuração de Pistas de Pouso: 1.1.1. Objetivos do Planejamento • Segurança nas operações de aeronaves o Separação adequada do tráfego aéreo o Condição para livrar obstáculos o Provisão de pista para vento de través • Pouca interferência e atraso nas operações de aeronaves • Minimizar movimentos de terra (custos de construção) • Evitar sobrevoo de áreas sensíveis ao ruído 1.2. Orientação de Pistas As pistas devem ser orientadas de modo que as aeronaves possam pousar pelo menos 95% do tempo com componente de vento de través menor ou igual a:
  • 55.
    Aula 05 -Aeroportos Apostila de Aeroportos 55 Comprimento de Referência da Pista Componente de Vento de través permitido > 1.500 m 20 nós 1.200 a 1.499 m 13 nós < 1.200 m 10 nós 1.2.1. Determinação Gráfica da Orientação da Pista 1. Obter os dados de vento (de pelo menos 5 anos); 2. Analisar e agrupar os dados por direção e velocidade; 3. Marcar as porcentagens de vento no setor apropriado na Rosa dos Ventos; 4. Traçar numa tira transparente 3 retas paralelas equidistantes, na mesma escala da Rosa de Ventos(com largura em escala = 2 x vento través(T) = (T+T); 5. Colocar a tira transparente sobre a Rosa dos Ventos de forma que a linha paralela mediana passe pelo seu centro; 6. Observar, girando a tira transparente, a direção para a qual a soma das porcentagens fora das linhas externas corresponda a um mínimo; 7. Ler a orientação da pista, na escala externa da Rosa dos Ventos, indicada pela linha central da tira transparente; 8. Ajustar a orientação à declinação magnética, a fim de obter o rumo correto da pista; 9. Se a porcentagem obtida no “passo n° 6” for maior que 5%, determinar a orientação da pista para vento de través (pista secundária) do mesmo modo, com exceção de que deverá ser observada nesse caso a soma das porcentagens de vento que ficarem fora das paralelas que definiram a 1ª orientação e das que definirem a 2ª orientação da pista.
  • 56.
    Aula 05 -Aeroportos Apostila de Aeroportos 56 PERCENTAGE OF WINDS WIND DIRECTION 0-4 mph 4-15 mph 15-20 mph 20-25 mph 25-35 mph Total CALMS 19.5 - - - - 19.5 N - 3.3 1.1 0.4 + 4.8 NNE - 1.8 0.3 + - 2.2 NE - 1.6 1.0 + + 2.7 ENE - 1.4 0.2 + + 1.7 ENE - 1.7 0.1 + - 1.8 ESSE - 1.6 0.1 + - 1.8 SE - 2.5 0.4 + + 3.0 SSE - 1.8 0.4 + - 2.2 S - 4.3 1.4 0.1 - 5.8 SSW - 3.0 1.1 0.1 + 4.3 SW - 4.3 1.4 0.4 + 6.1 WSW - 2.9 1.2 0.1 + 4.3 W - 4.0 2.8 0.4 0.1 7.3 WNW - 4.8 5.4 0.7 0.2 11.1 NW - 6.0 5.9 0.6 0.1 12.6 NNW - 3.6 4.7 0.4 + 8.8 Total 19.5 48.6 27.5 3.6 0.8 100.0 MPH = NÓ
  • 57.
    Aula 05 -Aeroportos Apostila de Aeroportos 57 FIGURA 5.01 FIGURA 5.02 – Efeitos do Vento na Aproximação e Pouso. LEGENDA: Vv = velocidade do vento Vvt = componente transversal do vento (perpendicular ao eixo da pista) Vvl = componente longitudinal do vento Va = velocidade aerodinâmica do avião Vat = componente transversal da velocidade do avião Val = componente longitudinal da velocidade do avião Va solo = velocidade do avião em relação ao solo = Val – Vvl
  • 58.
    Aula 05 -Aeroportos Apostila de Aeroportos 58 FIGURA 5.03 – Trajetória Obtida se a Proa Coincidir com o Prolongamento do Eixo da Pista. FIGURA 5.04 – Anemograma do Local A (Tabela Abaixo)
  • 59.
    Aula 05 -Aeroportos Apostila de Aeroportos 59 DIREÇÃO DO VENTO PORCENTAGEM DE VENTOS 0 - 3 nós 3 - 13 nós 13 - 25 nós 25 - 40 nós N 2,0 0,3 0,1 NNE 4,2 2,6 0,2 NE 4,8 2,3 0,2 ENE 7,5 4,8 0,3 ENE 4,5 1,3 0,1 ESSE 3,8 0,8 0,1 SE 1,7 0,3 - SSE 1,5 0,4 - S 2,2 1,1 - SSW 6,9 3,2 0,1 SW 7,0 7,6 0,3 WSW 4,7 2,3 0,1 W 2,2 0,9 0,2 WNW 2,0 0,1 - NW 3,5 0,4 - NNW 3,8 0,4 - TOTAIS 7,2 62,3 28,8 1,7
  • 60.
    Aula 05 -Aeroportos Apostila de Aeroportos 60 FIGURA 5.05 – Decomposição Vetorial dos Ventos no Anemograma. FIGURA 5.06 – Anemograma com Escolha de Direção de Pista.
  • 61.
    Aula 05 -Aeroportos Apostila de Aeroportos 61 Dados: Local B (Tabela 3) Componente transversal admissível: 13 nós Resultado: Direção escolhida 35° - 215°, N.V. Coeficiente de utilização: ≃ 97,6% 1.3. Quantidade de Pistas de Pouso e Decolagem O número de pistas é função de: • Demanda de tráfego previsto; • Disponibilidade física do sítio aeroportuário; • Orientação das Pistas. 1.4. Capacidades Horárias Estimadas Configuração de Pistas Afastamento (m) Capacidade Horária VFR IFR Pista única – 50 – 100 50 – 60 Duas Paralelas Próximas < 760 85 – 200 55 – 60 Intermediárias 760 – 1309 100 – 200 60 – 75 Distantes > 1310 100 – 200 100 – 120 Duas Interceptantes (*) Interseção próxima < 610 70 – 110 55 – 65 Interseção mediana 610 – 1525 55 – 105 50 – 60 Interseção distante > 1525 50 – 100 50 –60 Em “V” aberto Convergente – 65 – 160 50 – 60 Divergente – 70 – 170 55 – 70 (*) Distâncias a partir da cabeceira de pouso ou de decolagem 1.5.Configuração de Pistas – Comparação • Configurações com apenas uma orientação (pistas paralelas) são as melhores em termos de capacidade e eficiência de controle de tráfego. • Se a incidência de vento de través indica a necessidade de orientar as pistas em mais de uma direção, uma configuração em “V” aberto é mais conveniente que uma
  • 62.
    Aula 05 -Aeroportos Apostila de Aeroportos 62 configuração com pistas interceptantes. E, nesse caso, devem ser adotadas operações divergentes, sempre que possível. • Quando há uma direção predominante para a operação das aeronaves e não se pode evitar o uso de uma configuração com pistas interceptantes, a interseção deve estar o mais próximo possível das cabeceiras, observando-se aquela direção predominante das operações. 1.6. Pistas de Táxi 1.6.1. Objetivos do Planejamento • Permitir o acesso entre pistas de pouso, área terminal e áreas de serviço; • Evitar conflitos entre aeronaves operantes distinguindo: o Trajetórias de táxiamento para partidas e para chegadas; o Áreas de manutenção e de operações de carga • Evitar que pistas de táxi cruzem pistas de pouso; • Minimizar o tempo de ocupação de pista de pouso nas operações de chegada. 1.6.2. Pista de Táxi-Saída • Configuração (tipo) o Em ângulo reto (90º) o Em ângulo (40º – 45º) o De alta velocidade (ou de saída rápida = 30°) • Localização o Velocidades de aproximação e de toque o Velocidade de saída o Taxa de desaceleração da aeronave o Composição da frota (mix de aeronaves) o Técnicas de pilotagem • Velocidades típicas de toque: 95 – 140 nós2 ; (176 – 259 km/h) • Distâncias típicas de toque: 300 – 450 m; 2 1 Nó = 1,852 km/h.
  • 63.
    Aula 05 -Aeroportos Apostila de Aeroportos 63 • Velocidade de saída: 25 Km/h (saídas a 90°) 95 Km/h (saídas de 30 a 40°) • Taxa de desaceleração: 1,25 m / s² ICAO 1,50 m / s² FAA • Correções para a localização da saída ‫ܦ‬ ൌ ܸ௧ ଶ െ ܸ௦ ଶ 2. ܽ D = Distância de aceleração da aeronave no solo; Vt = Velocidade de toque da aeronave (m/s); Vs = Velocidade de saída da aeronave (m/s); 30º 26m/s 90º 0m/s a = Desaceleração da aeronave no solo (m/s²) (valor médio FAA = 1,52 /s²); Distância de toque ≈ 450 m (aeronaves comerciais) ≈ 300 m (outras) Ds = D+450 ou Ds = D+300 Velocidade de toque B-707,DC-10, L-III, B747, etc = 72m/s x 3,6 = 259 km/h B-737, B727, etc = 67m/s x 3,6 = 241 km/h Bimotores leves = 49m/s x 3,6 = 176 km/h Monomotores = 31m/s x 3,6 = 112 km/h D Distância de toque PISTA TOQUE SAÌDA DE PISTA
  • 64.
    Aula 05 -Aeroportos Apostila de Aeroportos 64 a) Elevação do Aeroporto: + 3% para cada 300 metros de altitude acima do nível do mar b) Temperatura de Referência do Aeroporto: + 1,58% para cada 5,5°C acima da temperatura padrão do aeroporto. Nota: geralmente, considera-se um acréscimo de 100 a 150 m na distância calculada em razão da possibilidade da influência de fatores como habilidade do piloto, pavimento molhado ou condições precárias de pneus. 1.7. Baias de Espera • Localizam-se junto ou próximo às cabeceiras da pista para aeronaves no aguardo de autorização para decolagem e/ou para “checks” finais antes do vôo; • Devem ser suficientemente grandes para permitir manobras de ultrapassagem e para acomodar 3 ou 4 aeronaves do tamanho mais crítico. 1.8. Evolução do Sistema de Pistas de Táxi • Áreas de giro • Táxi Paralelo Parcial • Táxi Paralelo Total • Táxi paralelo Duplo 1.9. Localização da Área Terminal / Pátio de Aeronaves 1.9.1. Objetivos de Planejamento • Minimizar as distâncias de táxiamento do pátio para as pistas de pouso e vice- versa; • Evitar localizações sob as trajetórias de aproximação e decolagem de aeronaves. 1.9.2. Fatores que influenciam a localização da Área Terminal • Distâncias de táxiamento • Acesso viário ao aeroporto • Potencial de expansão • Proximidade com outras instalações o De carga o De manutenção de aeronaves o De apoio
  • 65.
    Aula 05 -Aeroportos Apostila de Aeroportos 65 • Topografia o Zonas de proteção desimpedidas o Adequabilidade para construção (custos) 1.9.3. Localização de Instalações da Área Terminal • Pista única Devem estar equidistantes das cabeceiras. Podem estar mais próximas de uma das cabeceiras quando há uma direção predominante de operação das aeronaves. • Duas Pistas Paralelas Localizar as instalações preferencialmente entre as pistas. Podem situar-se, entretanto, mais próximas das cabeceiras de acordo com a direção predominante de operação. As pistas podem ser defasadas sendo que isto é vantajoso apenas em condições de tráfego pouco intenso. Quando, por alguma razão, o Terminal tende ser situado em um dos lados externos às pistas podem surgir problemas de cruzamento de pistas de pouso e grandes distâncias de táxiamento a vencer. • Pistas em diferentes direções Localizar as instalações equidistantes entre as pistas, de modo a minimizar as distâncias de táxiamento. FIGURA 5.07
  • 66.
    Apostila de Aeroportos Aula05 - Aeroportos 66
  • 67.
    2. Outras Instalações 2.1.Infraestruturade A Terminal de cargas (TECA) • Edificações e pátios para recebimento, tratamento, armazenamento e transferência de cargas. • Necessitam de instalações para depósito em bagagens (paletização / containerização), circul No Brasil: • A carga doméstica é tratada pelas companhias aéreas. • A carga internacional (principalmente importação) é manipulada pela INFRAERO. A localização do TECA deve: Apostila de Aeroportos de Apoio Terminal de cargas (TECA): Edificações e pátios para recebimento, tratamento, armazenamento e transferência Necessitam de instalações para depósito em bagagens (paletização / containerização), circulação, escritórios e atendimento público. A carga doméstica é tratada pelas companhias aéreas. A carga internacional (principalmente importação) é manipulada pela INFRAERO. A localização do TECA deve: Aula 05 - Aeroportos 67 Edificações e pátios para recebimento, tratamento, armazenamento e transferência Necessitam de instalações para depósito em bagagens (paletização / A carga internacional (principalmente importação) é manipulada pela INFRAERO.
  • 68.
    • Viabilizar omais fácil possível os permitir o acesso da aeronave, ou das cargas provenientes das aeronaves e dos transportes terrestres (caminhões e outros) o mais eficientemente possível. Segundo o IAC (manual de Capacidade da CECIA) para dime planejamento usa-se: Onde: A: área do TECA em m². T: tonelagem anual prevista (em ton.) F: fator de flutuação da demanda de carga (1,1 a 1,5). Maior quanto menor for o T. t: relação do tempo de operação por média do período de média de 5 dias, t=73) d: densidade média da carga (varia de 0,0875 a 0,158 ton/m³) h: altura máxima de empilhamento (depende do equipamento disponível. De 1, a 4,0m). f: fator que depende da configuração das áreas de armazenag a 0,7). Ou da mesma forma: Onde: F: pode variar de 1,3 a 2,5 tm: tempo médio de permanência no terminal. Hangares: Destinados a: Permanência Proteção Manutenção Reparo das Aeronaves Apostila de Aeroportos Viabilizar o mais fácil possível os tratamentos de cargas e usuários. Isto é, deve permitir o acesso da aeronave, ou das cargas provenientes das aeronaves e dos transportes terrestres (caminhões e outros) o mais eficientemente possível. Segundo o IAC (manual de Capacidade da CECIA) para dimensionar ao nível de A: área do TECA em m². T: tonelagem anual prevista (em ton.) F: fator de flutuação da demanda de carga (1,1 a 1,5). Maior quanto menor for t: relação do tempo de operação por média do período de média de 5 dias, t=73)(365/5 = 73). d: densidade média da carga (varia de 0,0875 a 0,158 ton/m³) h: altura máxima de empilhamento (depende do equipamento disponível. De 1, f: fator que depende da configuração das áreas de armazenag F: pode variar de 1,3 a 2,5 : tempo médio de permanência no terminal. Reparo das Aeronaves Aula 05 - Aeroportos 68 tratamentos de cargas e usuários. Isto é, deve permitir o acesso da aeronave, ou das cargas provenientes das aeronaves e dos transportes terrestres (caminhões e outros) o mais eficientemente possível. nsionar ao nível de F: fator de flutuação da demanda de carga (1,1 a 1,5). Maior quanto menor for t: relação do tempo de operação por média do período de armazenagem (p/ d: densidade média da carga (varia de 0,0875 a 0,158 ton/m³) h: altura máxima de empilhamento (depende do equipamento disponível. De 1, f: fator que depende da configuração das áreas de armazenagem (varia de 0,4
  • 69.
    Aula 05 -Aeroportos Apostila de Aeroportos 69 Englobam: Pátios e edificações para aeronaves Oficinas Almoxarifados Escritórios, etc. Parque de Combustível: • Potencialmente uma área perigosa, mas essencial; • Tipos de combustível armazenado; • AVTUR – querosene de aviação (aviões a turbina) • AVGAS – gasolina de aviação (aviões a pistão) • O abastecimento é feito por carros-tanques ou hidrantes. Porte da área depende: • Tempo de reserva (de 3 a 30 dias, conforme dificuldade de acesso do combustível à região); • Tipo de armazenamento (enterrado e semi-enterrado para pequenos volumes e de superfície, na vertical ou horizontal para grandes volumes). Normalmente: < 100.000 litros tanques subterrâneos ou horizontais de superfície. > 100.000 litros tanques verticais de superfície. Roteiro para dimensionamento • Cálculo do consumo diário em função da frota operante; • Estabelecimento do tempo de reserva: 5 a 10 dias; • Obtenção do volume de tancagem; • Definição do tipo de tanque; • Formação de baias de contenção; • Previsão de separações de segurança. Serviços contra Incêndio: Apresenta duas esferas de atuação:
  • 70.
    Aula 05 -Aeroportos Apostila de Aeroportos 70 • Voltada para as edificações disposição de hidrantes, sprinklers (chuveiros automáticos), extintores tipo água, espuma, CO2, pó químico seco, para incêndios que deixam resíduos, inflamáveis, elétricos e pirofóricos respectivamente. • Voltada ao atendimento do lado aéreo depende da classe das aeronaves e da frequência de operação. Para cada uma existem exigências mínimas de agentes extintores e carros de combate. Para o 1º caso: Instalações localizadas de maneira a atender o sinistro no menor tempo possível. Para o 2º caso: Previstas aéreas para permanência do pessoal em estado de alerta, incluindo alojamentos, salas de estar, setores para treinamento, fácil acesso e circulação. Do ponto mais distante ao avião em chamas no máximo em “3 minutos”. Categoria do Aeroporto Comprimento da Aeronave Número de de (m) até (m) AR AP 1 0,00 8,99 1 0 2 9,00 11,99 1 0 3 12,00 17,99 1 0 4 18,00 23,99 1 1 5 24,00 27,99 1 1 6 28,00 38,99 1 2 7 39,00 48,99 1 2 8 49,00 60,99 1 2 9 61,00 76 1 2 ou 3 AR: carro de ataque rápido AP: carro de ataque pesado Comissária: • Preparação do serviço de bordo (feito dentro ou fora do aeroporto) • Embalagem adequada dos alimentos Torre de Controle: Critérios para instalação: • Proporcionar ao controlador do aeródromo ampla e total visibilidade do circuito de tráfego sob jurisdição, das pistas em operação e de todas as áreas utilizadas pelas aeronaves em movimento na superfície do aeródromo sob controle da torre; • Dispor de área suficiente para acomodar as edificações iniciais e permitir futuras expansões;
  • 71.
    Aula 05 -Aeroportos Apostila de Aeroportos 71 • Evitar qualquer interferência da altura da torre nos gabaritos de zona de proteção do aeródromo, assim como devem ser avaliadas suas influências sobre o desempenho dos auxílios rádio à navegação e à aproximação; • Ter avaliado a profundidade de percepção das superfícies sob controle da torre, evitando a incidência solar sobre o controlador (no hemisfério sul a face operacional deve ser orientada preferencialmente para o sul) e o prejuízo provocado por fontes externas; • Ter minimizado o efeito do ruído no desempenho operacional (alguns casos exigem insonorização); • Evitar que o sítio da torre cruze áreas operacionais; • Ter estudado o plano diretor para evitar que futuras instalações passem a ser obstáculos. Sala de Tráfego: • Onde são prestados serviços de apoio ao vôo; • Serve de elo entre os pilotos e os órgãos de proteção ao vôo; • Os pilotos verificam as condições de operação e de meteorologia em rota, submetem planos de vôo antes da decolagem. Infraestrutura Básica: • Água • Esgoto • Telecomunicações • Energia • Lixo • Gás Acesso / Circulação: (aula específica sobre o assunto) REFERÊNCIAS: Sória, M. H. A. (1983) Orientação de pista, USP-São Carlos, apostila Goldner, N.(1993), Aeroportos, UFRJ, apostila
  • 72.
    Aula 06 -Aeroportos Apostila de Aeroportos 72 AULA 06 1. Escolha De Sítio Aeroportuário 1.1. Objetivo • Sítio tamanho adequado e localização apropriada para servir os usuários; • Avaliar alternativas sob critérios econômicos, geográficos, de engenharia e ambientais. 1.2.Etapas do Processo de Escolha 1. Estabelecer aproximadamente tipo e dimensões do aeroporto; 2. Estudo de escritório: prováveis alternativas; 3. Estudo de campo: alternativas escolhidas; 4. Avaliação final e seleção; 5. Relatório e recomendações. 1.3.Fatores que Influenciam Dimensões do Aeroporto • Volume de passageiros e aeronaves o Número de pistas de pouso/decolagem o Pistas de táxi o Pátio de aeronaves o Terminal de passageiros e cargas o Acesso viário, vias de circulação e estacionamento o Área de apoio (hangares, comissária etc.) • Altitude do local • Condições meteorológicas (vento e temperatura) • Tráfego aéreo (rotas aéreas de aeroportos próximos) • Área de reserva (amortecer incômodo do ruído aeronáutico sob a comunidade) 1.4.Estudo de Escritório de Possíveis Alternativas 1.4.1. Critérios Básicos de Localização • Área (dimensões ideais para a implantação do aeroporto);
  • 73.
    Aula 06 -Aeroportos Apostila de Aeroportos 73 • Área recomendada (incluir curva 1 de ruído); • Relacionamento urbano (fora da área urbana e contrária aos vetores de expansão); • Distância ao centro urbano (10 a 30 km); • Acesso viário (próximo à rodovias); • Infraestrutura (energia elétrica, esgotos, água e telecomunicações); • Topografia (livre de obstáculos, área plana); • Geologia (solo de bom suporte); • Meteorologia (vento, temperatura e chuva); • Viabilidade econômica (custos monetários, sociais e ambientais). 1.5.Metodologia de Escolha de Sítio Aeroportuário Tese de mestrado / COPPE/UFRJ – 1985 Edmilton Menezes da silva – IAC REQUISITOS ALTERNATIVAS 1 2 3 4 5 6 7 ÁREA 0 0 0 1 1 1 1 USO DO SOLO 1 0 0 1 1 1 1 ACESSO 1 0 1 0 1 1 1 INFRA-ESTRUTURA 1 1 1 0 1 1 1 TOPOGRAFIA 0 0 0 1 1 1 0 GEOLOGIA 1 1 1 1 1 1 1 DISTÂNCIA 1 1 1 0 0 0 1 METEOROLOGIA 0 1 1 0 1 1 1 CUSTOS 0 0 0 0 1 0 1 TOTAL - PONTOS 5 4 5 4 8 7 8 ESTUDO DOS FATORES DETERMINÍSTICOS GRUPO 1 – RELACIONAMENTO URBANO 4 – entre 15 a 20 km - Distância ao 3 – entre 10 a 15 km Centro Urbano 2 – entre 20 a 25 km (0,2) 1 – a menos de 10 km
  • 74.
    Aula 06 -Aeroportos Apostila de Aeroportos 74 4 – pavimentada e adjacente ao sítio - Vias de Acesso 3 – pavimentada até 5 km do sítio (0,3) 2 – em implantação (até 5 km) 1 – planejada 4 – área I e II dentro dos limites patrimoniais - Uso do solo no 3 – área I dentro dos limites patrimoniais Entorno – Ruído 2 – área II fora dos limites patrimoniais e uso do solo compatível (0,4) 1 – idem e uso do solo incompatível 4 – todos os serviços (E. Elétrica, Água, Telecomunicações, etc) - Infraestrutura 3 – Apenas E. Elétrica e Água de Serviços 2 – Apenas E. Elétrica (0,1) 1 – Dificuldades de implantação de Serviços 4 – Ótimo 3 – Bom 2 – Regular 1 – Ruim GRUPO 2 – FATORES OPERACIONAIS 4 – nenhum obstáculo - Obstáculos Físicos 3 – apenas na área horizontal (0,4) 2 – área de transição 1 – área de aproximação
  • 75.
    Aula 06 -Aeroportos Apostila de Aeroportos 75 4 – 95% de comprimento de pista na direção dos ventos predominantes - Direção dos 3 – entre 75% e 95% ventos 2 – entre 60% e 75% (0,4) 1 – entre 50% e 60% - Proximidade de 4 – não há aeroportos num raio de 50 km Outros Aeroportos 3 – entre 20 e 50 km (0,2) 2 – entre 10 e 20 km 1 – a menos de 10 km GRUPO 3 – FATORES FÍSICOS E GEOGRÁFICOS 4 – área plana sem problema de drenagem - Movimentação 3 – baixos custos no movimento de terra de Terra 2 – custo médio no movimento de terra (0,4) 1 – altos custos no movimento de terra 4 – adequada e com possibilidade de expansão em todas as - Dimensões de área direções e Possibilidade 3 – expansão apenas nas cabeceiras de Expansão 2 – apenas uma das cabeceiras (0,3) 1 – sem possibilidades de expansão
  • 76.
    Aula 06 -Aeroportos Apostila de Aeroportos 76 4 – propriedades do poder público - Valor da Terra 3 – baixo custo de desapropriação (0,3) 2 – custo médio de desapropriação 1 – alto custo de desapropriação a) PROCEDIMENTOS (1) - Eleição dos Grupos de Fatores Determinísticos e seus respectivos atributos (2) - Elaboração de Arranjos Matriciais (3) - Estabelecimento dos pesos relativos dos atributos dentro do seu grupo b) ESTABELECIMENTO DE CRITÉRIOS NA ATRIBUIÇÃO DE PESOS AO TRIBUTOS (A PARTIR DAS CONDIÇÕES REAIS) CONCEITO PESO EXCELENTE 4 BOM 3 SATISFATÓRIO 2 RUIM 1 c) ELEIÇÃO DOS ATRIBUTOS GRUPO I – FATORES DE RELACIONAMENTO URBANO SÍTIOS 01 02 ... n ATRIBUTOS PESO REL. DISTÂNCIA AO CENTRO URBANO 0.2 VIAS DE ACESSO 0.3 USO DO SOLO NO ENTORNO – RUÍDO 0.4 INFRA-ESTRUTURA DE SERVIÇOS 0.1 TOTAL 1.0
  • 77.
    Aula 06 -Aeroportos Apostila de Aeroportos 77 GRUPO II – FATORES OPERACIONAIS SÍTIOS 01 02 ... n ATRIBUTOS PESO REL. OBSTÁCULOS FÍSICOS 0.4 DIREÇÃO DOS VENTOS 0.4 PROXIMIDADE AEROPORTOS 0.2 TOTAL 1.0 GRUPO II – FATORES FÍSICOS/GEOGRÁFICOS SÍTIOS 01 02 ... n ATRIBUTOS PESO REL. TERRAPLENAGEM 0.4 DIMENSÕES DA ÁREA 0.3 VALOR DA TERRA 0.3 TOTAL 1.0 REFERÊNCIAS: Silva, E. M. (1985), Escolha de sítio aeroportuário, Dissertação de Mestrado, COPPE/UFRJ
  • 78.
    Aula 07 -Aeroportos Apostila de Aeroportos 78 AULA 07 1. Plano Diretor Aeroportuário 1.1.Características Gerais Conjunto de documentos que apresentam a orientação para a implantação e desenvolvimento do aeroporto. É fundamental para a construção ou ampliação do aeroporto, garantindo a harmonização pelas diversas fases de crescimento, sem desperdícios e em compatibilidade com: o meio ambiente, o progresso da comunidade e os outros fatores intervenientes. 1.1.1. Sequencia de Fases • Fase 1 – Informações Básicas: consiste no levantamento dos dados necessários e suficientes para a realização dos estudos preliminares do aeroporto. • Fase 2 – Estudos Preliminares: consiste na avaliação dos dados coletados para determinação dos requisitos do aeroporto. • Fase 3 – Escolha do Local: consiste na opção, após comparação dos vários locais indicados nas fases anteriores, no caso da implantação de um novo aeroporto. • Fase 4 – Planejamento Geral: Consiste no estabelecimento da configuração do aeroporto, com indicação de seus elementos mais importantes, proposição para uso da terra e zona de proteção do aeroporto, planejamento da área terminal e das vias de acesso e plano de viabilidade econômica e financeira. Cada fase deve ser examinada e analisada, considerando-se a viabilidade técnica e econômica. Os profissionais incumbidos do estudo das quatro fases podem quando julgarem necessário, apresentar informações ou sugestões complementares. 1.2. Informações Básicas • Nome da região, localização geográfica representada em mapas e plantas com indicação do Norte Verdadeiro e Norte Magnético; • Dados históricos que permitam visualizar o desenvolvimento, a necessidade de existência do aeroporto e a possibilidade de sua ampliação futura; • Plantas topográficas do terreno e áreas adjacentes; • Natureza do solo, tipos de vegetação e sondagens existentes;
  • 79.
    Aula 07 -Aeroportos Apostila de Aeroportos 79 • No caso de ampliação ou melhoramento do aeroporto, levantamento e análise das atuais instalações, indicando as deficiências observadas; • Legislação relativa ao uso do solo e à execução de obras na região; • Estudos de planejamento existentes para a região; • Características gerais e situação das rodovias, ferrovias e portos existentes ou planejados, na região ou em suas vizinhanças; • Jazidas e indústrias de materiais de construção; • Dados de caráter ambiental, como ecologia da área e possível impacto do ruído dos aviões na comunidade; • Dados sócio-econômicos relativos à população, aos meios de transporte e outros que possam interessar no estudo da demanda do aeroporto; • Dados meteorológicos relativos à temperatura, vento, chuvas e ocorrência de nevoeiros; 1.3.Estudos Preliminares Constam da análise e avaliação das informações básicas coletadas. Visa determinar os requisitos essenciais ao empreendimento a ser desenvolvido. 1.3.1. Estudo da demanda do Transporte Aéreo Deve ser desenvolvido com base na análise dos elementos coletados, estabelecendo as projeções de demanda no horizonte de tempo pré-definido nas diretrizes. 1.3.2. Estudo da Capacidade da Infraestrutura Aeroportuária • Área de movimento para aeronaves considerando-se o número máximo de operações que o conjunto de pistas deve acomodar; • Área terminal com a estimativa da capacidade individual de cada um dos elementos, ou seja, estacionamentos das aeronaves, pátios, terminal de passageiros, terminal de carga etc.; • Espaço aéreo com a estimativa de capacidade em função da natureza das operações (IFR e VFR), proximidade de outros aeroportos e da presença de obstáculos. • Vias de acesso de superfície com a estimativa da capacidade em termos de veículos por unidade de tempo, decorrente do transportes de cargas e de pessoas, considerando-se os passageiros, acompanhantes, visitantes e funcionários.
  • 80.
    Aula 07 -Aeroportos Apostila de Aeroportos 80 1.4. Escolha do Local 1.4.1. Estudo de Gabinete Fornecem elementos que, provavelmente, permite reduzir o n° de locais selecionados preliminarmente, o que diminui os elevados custos com as pesquisas de campo, seguindo as seguintes orientações: • Localização de outros aeroportos existentes ou planejados; • Levantamento de planos do uso da terra, programas e projetos; • Levantamento dos custos dos terrenos e cadastro de seus proprietários; • Estudo das características topográficas; • Estudo do custo provável da elaboração do anteprojeto em cada local; • Distribuição e atividades da população relativamente aos locais selecionados. 1.4.2. Pesquisas de Campo • Realização de sondagens geotécnicas; • Retirada de amostras do solo; • Fotografias aéreas e terrestres da área. 1.4.3. Avaliação Final e Seleção • Selecionar o melhor local; • Detalhamento do local, posteriormente. 1.5.Planejamento Geral do Aeroporto Conjunto de planos e plantas sistematicamente ordenados, objetivando encontrar a melhor solução para o desenvolvimento do aeroporto, composto pelos seguintes documentos: • Plano do Aeroporto (mapas de localização e situação, e plantas de zoneamento e configuração); • Plano do uso da terra; • Plano de Zona de Proteção; • Plano da Área Terminal; • Plano das Vias de Acesso; • Plano de Viabilidade Econômico-Financeira.
  • 81.
    Aula 07 -Aeroportos Apostila de Aeroportos 81 1.6.Impactos 1.6.1. Sociais • Demografia taxa de crescimento da população, grau de urbanização, tamanho da família na sociedade,...; • Economia nível de empregos, imposto territorial, participação da força de trabalho,...; • Estrutura Social nível escolar, disponibilidade de casas,...etc; • Serviços Públicos educação pública, assistência médica, transportes,..; • Bem-Estar Social taxa de criminalidade, sanidade mental, ...etc. 1.6.2. Econômicos • Benefícios Quantificáveis magnitude, tempo e lugar de ocorrência. 1.6.3. Ambientais • Sistema Ecológico fauna, flora; • Terra uso da terra, lixo, erosão, geologia; • Água fornecimento, hidrologia, propriedades; • Ar qualidade; • Ruído poluição sonora; • Outros preservação de locais, interesse paisagístico.
  • 82.
    Aula 07 -Aeroportos Apostila de Aeroportos 82 DIAGRAMADECONVERSÃODEDEMANDAANUALPARAPLANEJAMENTODEAEROPORTOS Fonte:CursoEngenhariadeAeroportos–SingaporeAviationAcademy(1993)
  • 83.
    Aula 07 -Aeroportos Apostila de Aeroportos 83 SISTEMA AERONÁUTICO GRUPO DE PLANEJAMENTO INDÚSTRIA AERONÁUTICA GRUPO DE PILOTOS AUTORIDADES ESTADUAIS E MUNICIPAIS GRUPOS DE HABITANTES LOCAIS AUTORIDADES AEROPORTUÁRIAS AVIAÇÃO GERAL MILITAR GOVERNO FEDERAL TRANSPORTADORAS AÉREAS GRUPO DE REPRESENTANTES PARTICIPANTES NO PROCESSO DE PLANEJAMENTO
  • 84.
    Aula 07 -Aeroportos Apostila de Aeroportos 84 1 Inventário do Sistema 2 Previsão das Futuras Atividades 15 Tomador de Decisão 14 Cenários do Futuro Sistema 3 Análise Capacidade/Demanda 4 Futuras Instalações Necessárias 5 Gerar Alternativas 6 Análise Capacidade/Demanda 7 Avaliação das Alternativas 8 Viabilidade Financeira 9 Seleção de Alternativas 10 Preparar o Plano 11 Implementar o Plano 12 Monitorar as Atividades 13 Critérios de Planejamento
  • 85.
    Aula 07 -Aeroportos Apostila de Aeroportos 85 SISTEMA AEROPORTUÁRIO ACESSO - EGRESSO veículos ACESSO - VIÁRIO CIRCULAÇÃO MEIO - FIO ESTACIONAMENTO TERMINAL DE PASSAGEIROS Componente Embarque Componente Trânsito Componente Desembarque Componente Apoio PÁTIO Operações com: Pax Aeronaves Bag ACESSO - AÉREO Pistas Espaço Aéreo aeronaves DESTINO - ORIGEM Fonte: Gualda, 1978
  • 86.
    Aula 07 -Aeroportos Apostila de Aeroportos 86 SISTEMA AERONÁUTICO 1.7.O Plano Diretor de acordo com as Normas da Icao O plano diretor é um guia para: • O desenvolvimento das facilidades físicas de um aeroporto; • O desenvolvimento do uso do solo das áreas ao redor do aeroporto; • Determinação dos efeitos no meio ambiente da construção e operação do aeródromo; • Estabelecimentos dos acessos necessários ao aeroporto. Etapas de Planejamento do Plano Diretor: • Preparação do plano de trabalho; • Inventário e condições dos documentos existentes; • Previsão da demanda futura do tráfego aéreo; • Determinação das etapas e do tempo de realização para as facilidades; • Avaliação das restrições existentes e potenciais; • Determinação da importância relativa das restrições e outras considerações; • Desenvolvimento de várias opções de planos (alternativas); • Avaliação e análise de todas as alternativas; • Seleção da opção (alternativa) mais apropriada e aceitável, refinando e modificando como parte de um processo de reavaliação; • Preparação de um documento final sobre o plano.
  • 87.
    Aula 07 -Aeroportos Apostila de Aeroportos 87 Etapas de Planejamentos Descrição Pré-Planejamento Coordenação, processo de planejamento, organização do planejamento, objetivos e política de metas. Previsão para o propósito de planejamento Necessidades, previsões necessárias, métodos e princípios de previsão, fatores, apresentação das previsões. Plano Financeiro e Controle Custo do Capital, necessidades de dinheiro, busca de fundos, financiamento doméstico e internacional; Custos operacionais; Fontes de receita. Avaliação e Seleção do local Tamanho da área necessária, localização dos locais potenciais, fatores que afetam a localização do aeroporto, estudo preliminar dos possíveis locais, inspeção do local, consideração dos custos operacionais e sociais, estudo do meio ambiente, revisão dos locais potenciais, estimativa de custos e receitas, avaliação final. Pista de pouso e decolagem e Pistas de Táxi Dimensões, resistência, características das aeronaves, performance, comprimento da pista (pouso / decolagem), configuração, capacidade. Pátios Layout dos pátios, tamanho das posições, estacionamento, serviços e hangares, área de espera das aeronaves, segurança, área de equipamento de pátio. Navegação Aérea e Terrestre, Auxílios e Controle de Tráfego. Auxílios visuais, de rádio navegação e suas edificações, demarcação de áreas críticas, serviço de tráfego aéreo, serviço de busca e salvamento, controle de pátio e comunicações.
  • 88.
    Aula 07 -Aeroportos Apostila de Aeroportos 88 Etapas de Planejamentos Descrição Terminal de Passageiros Princípios de planejamento, características dos serviços e do tráfego do aeroporto, fatores afetando a escala de serviços a serem ofertados, demanda e capacidade. Conexão entre o terminal de passageiros e o sistema de acesso, processamento de passageiros e bagagem, áreas de espera, controle de passaporte, links com a parte aérea, veículos p/ movimentação de passageiros no pátio, transferência de passageiros em conexão, outros serviços para passageiros. Necessidades para instalação da Carga Local, tipo e função da edificação, pátio, acessos, estacionamento, inspeção e controle. Transporte terrestre e Circulação interna de veículos e estacionamentos. Modos públicos e privados de transporte, dados de tráfego, circulação interna, meio fio, estacionamento de veículos. Instalações para operação e suporte do aeroporto Administração e manutenção, centro médico, estação de abastecimento de veículos, oferta de água e sanitários, comissária, cozinhas, serviços meteorológicos, sala de tráfego (da tripulação), manutenção de aeronaves, bombeiros e resgate, instalações de aviação em geral, abastecimento de aeronaves. Segurança Segurança do lado aéreo: isolar as vias e posição de estacionamentos, segurança da área de estacionamento, área de espera utilizada para explosão de emergência; Segurança do lado terra: terminal de passageiros, locais públicos de armazenamento com chave.
  • 89.
    Aula 07 -Aeroportos Apostila de Aeroportos 89 1.7.1. Demanda de Tráfego De Passageiros: • Movimento de passageiros anual nos últimos 10 anos; • Movimento de passageiros mensal nos últimos 5 anos; • Movimento de passageiros, horário dos 10 dias de pico dos últimos 5 anos. De Aeronaves: • Movimento anual dos últimos 10 anos; • Movimentos mensais dos últimos 5 anos; • Movimentos horários dos 10 dias de pico dos últimos 5 anos. 1.7.2. Crescimento de Passageiros e de Aeronaves (doméstico e internacional) • Mix atual e futuro de aeronaves para os próximos 15 anos; • Padrão histórico do movimento de aeronaves militares e seu crescimento (se for o caso); • Quadro de horário de operação das linhas aéreas; • Dados sócio-econômicos gerais, dados econômicos básicos e taxas de crescimento da capacidade e da região do aeroporto, incluindo dados de população, emprego, renda, turismo, atividades da construção civil, demandas da indústria, etc. Distribuição da renda na cidade, região e país, com mudanças projetadas no modelo de distribuição. Custo e níveis de serviço dos modos de transporte e terrestre. Dados sobre o Meio Ambiente: • Legislação do planejamento local; • Planos de desenvolvimento local, com detalhamento, indicando planos para desenvolvimento metropolitano e regional; • Usos do solo existente e papel de desenvolvimento no ambiente do aeroporto; • Relacionamento entre planos de transporte local e plano de transportes nacional e estratégias de investimentos nos vários níveis de governo; • Legislação e Regulamentação sobre ruído, local e nacional, corrente e planejada.
  • 90.
    Aula 07 -Aeroportos Apostila de Aeroportos 90 Dados físicos: • Descrição e divisão modal dos modos de acesso existentes; • Dados Meteorológicos: vento, chuva, neve, período de baixa visibilidade. • Detalhamento topográfico de aproximadamente 30 Km ao redor do aeroporto, com contornos de 10 Km na escala 1: 50.000; • Maior detalhamento topográfico de 3 a 5 Km ao redor do aeroporto e um contorno de aproximadamente 1 Km na escala 1: 2.000; • Plantas das construções existentes com detalhes de propriedade; • Detalhes das avarias nas edificações existentes, distribuídas nas diversas funções; • Plantas de detalhamento arquitetônico de algum terminal existente projetado para uso de várias utilidades, por exemplo: imigração, visitantes, check-in, devolução de bagagem, administração, concessão, etc. • Detalhamento da estrutura das construções dos pátios, pistas de táxi, pistas de pouso e decolagem e principais construções; • Avaliação do comprimento e condições da resistência destes elementos; • Avaliação da estabilidade e indicação do tipo de estrutura (permanente, leve ou temporária); • Condições e extensão da drenagem existente; • Condições e expansão da iluminação das pistas (pouso/decolagem e táxi) e aproximações; • Condições e expansão da sinalização; • Condições, tipo e capacidade dos auxílios à navegação e telecomunicações; • Dados de obstáculos para as aeronaves penetrando nas superfícies protegidas (zonas de proteção); • Detalhes de serviços existentes de combate ao fogo, etc. • Outros dados físicos incluindo o meio ambiente (flora e fauna). Dados Gerais: • Outros planos de transportes e desenvolvimento no ambiente do aeroporto; • Planos de desenvolvimento comercial, turístico, industrial, governamental; • Fontes de financiamento em aeroportos em operação.
  • 91.
    Aula 07 -Aeroportos Apostila de Aeroportos 91 Dados Aeronáuticos: • Fila de espera, aproximações, aproximações perdidas (abortagem de pouso – arremeter), procedimentos de decolagem e abortagem de decolagem; • Aerovias. Dados sobre Construção: • Detalhamento dos custos do material de construção, por exemplo: concreto, aço, terra, alvenaria. Custos finais e custos de equipamentos. 1.8.Estrutura do Relatório sobre o Plano Diretor Demanda: • Previsão do tráfego de passageiros; • Previsão do tráfego de carga; • Previsão do movimento do transporte aéreo (aeronaves); • Previsão do movimento da aviação em geral e da militar; • Previsão do tráfego nos acessos terrestres por modos públicos e privados. Capacidade: • Para o lado Aéreo: pistas de pouso/decolagem, pistas de táxi, pátios e áreas de espera. • Para os Terminais: passageiro e carga. • Para o lado Terra: modos de acesso e estacionamento. Estimativa de Custos: • Pistas de pouso/decolagem, de táxi, pátios e áreas de espera; • Terminal de carga e passageiro; • Torre de controle, auxílios à navegação; • Facilidades de suporte, como meteorologia e combate a incêndio; • Rodovias, estacionamentos e acessos; • Área Militar; • Facilidades para aviação geral; • Áreas de Manutenção.
  • 92.
    Aula 07 -Aeroportos Apostila de Aeroportos 92 Acrescentar os seguintes desenhos: • Planta de orientação; • Planta de localização; • Planta do local existente; • Planta do uso do solo próximo; • Planta do uso do solo regional; • Planta do uso do solo do aeroporto; • Planta com o layout do aeroporto; • Planta com localização dos auxílios de navegação; • Planta com as zonas de proteção; • Planta com os acessos; • Planta da drenagem, movimentação de terra e paisagismo; • Contornos do ruído.
  • 93.
    Aula 08 -Aeroportos Apostila de Aeroportos 93 AULA 08 1. Plano de Zona de Proteção de Aeródromo Definição: Documento de aplicação genérica ou específica composto por um conjunto de superfícies imaginárias, bi ou tridimensionais, que estabelece as restrições impostas ao aproveitamento das propriedades dentro da Zona de Proteção de um aeródromo. Tipos: Básico de Zona de Proteção de Aeródromo; Básico de Zoneamento de Ruído; Básico de Zona de Proteção de Heliponto; Zona de Proteção de Auxílios à Navegação Aérea; Específico de Zona de Proteção de Aeródromo; e Específico de Zoneamento de Ruído. 1.1. Legislação Internacional • Organização de Aviação Civil Internacional (OACI) - Brasil • Federal Aviation Administration (FAA) - Estados Unidos • Service Technique des Bases Aeriennes (STBA) – França 1.2.Legislação Brasileira Portaria Nº 256/GC-5, de 13 de maio de 2011 Comando da Aeronáutica Regulamento Brasileiro da Aviação Civil – RBAC-154: Projetos, de 11 de maio de 2009 e RBAC 161 da ANAC, de 29 de setembro de 2011 Agência Nacional de Aviação Civil – ANAC 1.3.Plano Básico de Zona de Proteção de Aeródromo Documento de aplicação genérica em aeródromos, que estabelece as restrições impostas ao aproveitamento das propriedades dentro da Zona de proteção de um aeródromo.
  • 94.
    Aula 08 -Aeroportos Apostila de Aeroportos 94 1.4.Plano Específico de Zona de Proteção de Aeródromo Documento, elaborado pela DECEA, de aplicação específica que estabelece as restrições impostas ao aproveitamento das propriedades dentro da Zona de um determinado aeródromo. 1.5. Plano de Zona de Proteção de Aeródromo Superfícies: • Faixa de Pista (RBAC-154: Projetos) • de Aproximação • de Decolagem • de Transição • Horizontal Interna • Cônica • de Aproximação e Transição Interna e Pouso Interrompido
  • 95.
    Aula 08 -Aeroportos Apostila de Aeroportos 95 1.6.Faixa de Pista • Definição: Plano que envolve a pista de pouso e decolagem e tem, em cada ponto, a altitude do ponto mais próximo situado no eixo da pista ou no seu prolongamento. • Finalidade: Proteger as aeronaves no solo em caso de saírem da pista durante a corrida realizada após o pouso e para a decolagem. FIGURA 8.01 - PLANO BÁSICO DE ZONA DE PROTEÇÃO DE AERÓDROMO FAIXA DE PISTA PARÂMETROS CLASSE DO AERÓDROMO VFR IFR - NÃO PRECISÃO IFR - PRECISÃO CÓDIGO DE PISTA CÓDIGO DE PISTA CÓDIGO DE PISTA 1 2 3 e 4 1 e 2 3 e 4 1 e 2 3 e 4 A (m) 60 80 150 150 300 150 300 B (m) 30 60 60 60 60 60 60 NOTA: para efeito do traçado da faixa de pista, ao comprimento da pista de pouso são acrescidas as zona de parada, caso exitam. 1.7. Superfície de Aproximação • Definição: superfície que se estende em rampa, no sentido do prolongamento da cabeceira da pista de pouso e decolagem, a partir da faixa de pista. • Finalidade: definir a porção do espaço aéreo que se deve manter livre de obstáculos a fim de proteger as aeronaves durante a fase final de aproximação para pouso. A/2 ZONADEPARADA PISTADEPOUSO A BB
  • 96.
    Aula 08 -Aeroportos Apostila de Aeroportos 96 FIGURA 8.02 - Superfície de Aproximação SUPERFÍCIES DIMENSÕES (a) CLASSE DO AERÓDROMO VFR IFR - NÃO PRECISÃO IFR - PRECISÃO CÓDIGO DE PISTA CÓDIGO DE PISTA CÓDIGO DE PISTA 1 2 3 4 1 e 2 3 e 4 1 e 2 3 e 4 α 6° 6° 6° 6° 9° 9° 9° 9° 10% 10% 10% 10% 15% 15% 15% 15% R1 20 25 30 40 30 50 50 50 5% 4% 3,33% 2,5% 3,33% 2% 2,5% 2% R2 ― ― ― ― ― 40 33,3 40 ― ― ― ― ― 2,5% 3% 2,5% C m 30 60 60 60 60 60 60 60 D1 m 1600 2500 3000 3000 2500 3000 3000 3000 D2 m ― ― ― ― ― 3600 12000 3600 D3 m ― ― ― ― ― 8400 ― 8400 Obs.: IFR-PRECISÃO CAT II e CAT III somente pistas 3 e 4. (a) todas as dimensões são medidas horizontalmente. (b) comprimento variável (ver parágrafo 2º do Art. 20). (c) as dimensões as superfície poderão ser diferentes em função do desvio lateral ou curva. 1.8. Superfície de Decolagem • Definição: superfície que se estende em rampa, no sentido do prolongamento da cabeceira da pista de pouso e decolagem, a partir da Faixa de Pista ou da Zona Livre de Obstáculos (Clearway), caso exista. D3 D2 D1 C D1 D2 D3C 1/R2 1/R1 1/R1 1/R2 PERFIL SEÇÃO DE HORIZONTAL 2ª SEÇÃO 1ª SEÇÃO SEÇÃO DE HORIZONTAL2ª SEÇÃO 1ª SEÇÃO a a a a PISTA ZONA DE PARADA
  • 97.
    Aula 08 -Aeroportos Apostila de Aeroportos 97 • Finalidade: proporcionar proteção às aeronaves durante a decolagem, indicando a altitude máxima permitida para os obstáculos situados em sua área de abrangência. FIGURA 8.03 – Superfície de Decolagem SUPERFÍCIES DIMENSÕES (a) DECOLAGEM (e) CLASSES VFR IFR - NÃO PRECISÃO IFR - PRECISÃO CÓDIGO DE PISTA 1 2 3 e 4 c m (b) 30 60 60 L1 m 60 80 180 L2 m 380 580 1800 (c) α 6° 6° 7,12° 10% 10% 12,5% D m 1600 2500 15000 R 20 25 50 5% 4% 2% (d) H m 80 100 300 (a) todas as dimensões são medidas horizontalmente. (b) a superfície de decolagem começa no final da clearway se o compri- mento da clearway exceder a distâncias especificada. (c) 1800m quando a trajetória incluir mudança de proa maior que 15º em operações IMC, VMC à noite. (d) ver parágrafo 6º do Art. 12. (e) as dimensões da superfície poderão ser diferentes em função do desvio lateral ou curva. ÁREA DE DECOLAGEM ÁREA DE DECOLAGEM C D D D H 1/R 1/R PERFIL FAIXA DE PISTA ZONA LIVRE DE OBSTÁCULOS L/2L1 αααα αααα
  • 98.
    Aula 08 -Aeroportos Apostila de Aeroportos 98 1.9.Superfície de Aproximação e Transição Interna e Pouso Interrompido • Definição: superfície que se estende em rampa antes da pista na aproximação interna, e a partir dos limites laterais da faixa de pista e da interseção com a área de transição interna, e a partir da distância D2 de início da rampa de pouso interrompido, até o ponto onde sua altitude atinge o desnível de 45m em relação à elevação do aeródromo. • Finalidade: estabelecer um espaço aéreo adicional inviolável que deve ser mantido livre de obstáculos, a fim de proteger a fase final de aproximação e pouso e no caso de arremetidas de pousos interrompidos. SUPERFÍCIES DIMENSÕES (a) CLASSES IFR – PRECISÃO CATI IFR – PRECISÃO CAT II e III CÓDIGO DE PISTA CÓDIGO DE PISTA 1 e 2 3 e 4 3 e 4 APROXIMAÇÃO INTERNA L m 90 120(e) 120(e) C m 60 60 60 D1 m 900 900 900 R1 40 50 50 2,5% 2% 2% TRANSIÇÃO INTERNA R2 2,5 3 3 40% 33,3% 33,3% POUSO INTERROMPIDO L2 m 90 120(e) 120(e) D2 m (c) 1800(d) 1800(d) a 6º 6º 6º 10% 10% 10% R3 25 30 30 4% 3,33% 3,33% (a) todas as dimensões são medidas horizontalmente. (c) distância até o final da pista. (d) ou o final da pista, o que for menor. (e) onde a letra do código de referência do aeródromo for “F”, a lagura é aumentada para 155m.
  • 99.
    Aula 08 -Aeroportos Apostila de Aeroportos 99
  • 100.
    Aula 08 -Aeroportos Apostila de Aeroportos 100 1.10. Superfície de Transição • Definição: superfície que se estende em rampa, a partir dos limites laterais da Faixa de Pista e da interseção com a área de aproximação, onde houver, até o ponto onde sua altitude atinge o desnível de 45m em relação à elevação do aeródromo. • Finalidade: estabelecer um espaço aéreo adicional que deve ser mantido livre de obstáculos, a fim de proteger a fase final de aproximação e pouso, em caso de desvio do eixo da pista e/ou arremetidas. FIGURA 8.04 - Superfície de Transição ÁREADE APROXIMAÇÃO ÁREADE APROXIMAÇÃO FAIXADEPISTA 1/R 1/R 1/R 1/R a a a a A A CLASSEIFR-NÃO-PRECISÃOE IFR-PRECISÃOCÓDIGOS3E4 1/R 1/R 1/R 1/R ÁREADE APROXIMAÇÃO ÁREADE APROXIMAÇÃO a a a a B B FAIXADEPISTA DEMAISCLASSESECÓDIGOS 1/R 1/R 1/R 1/R ÁREADE APROXIMAÇÃO ÁREADE APROXIMAÇÃO CORTEAA CORTEBB DISNÍVELDE45m EMRELAÇÃOA ELEVAÇÃODO AERÓDROMO DISNÍVELDE45m EMRELAÇÃOA ELEVAÇÃODO AERÓDROMO
  • 101.
    Aula 08 -Aeroportos Apostila de Aeroportos 101 DIMENSÕES CLASSE DO AERÓDROMO VFR IFR - NÃO PRECISÃO IFR – PRECISÃO CÓDIGO DE PISTA CÓDIGO DE PISTA CÓDIGO DE PISTA 1 e 2 3 e 4 1 e 2 3 e 4 1, 2, 3 e 4 a 6° 6° 9° 9° 9° 10% 10% 15% 15% 15% R 5 7 5 7 7 20% 14,3% 20% 14,3% 14,3% Obs.: IFR-PRECISÃO CAT II e CAT III somente pistas 3 e 4. 1.11. Superfície Horizontal Interna • Definição: Plano horizontal formado por semicírculos centrados nas cabeceiras da pista, que se estende para fora dos limites das Áreas de Aproximação e Transição, com desnível de 45 m em relação à elevação do aeródromo. • Finalidade: Proteger o circuito de tráfego visual do aeródromo e as manobras que antecedem a aproximação e o pouso. FIGURA 8.05 – Superfície Horizontal Interna
  • 102.
    Aula 08 -Aeroportos Apostila de Aeroportos 102 Obs.: IFR-PRECISÃO CAT II e CAT III somente pistas 3 e 4. 1.12. Superfície Cônica • Definição: Superfície que se estende em rampa de 20:1 para fora dos limites externos da Área Horizontal Interna. • Finalidade: A exemplo da área horizontal interna tem a finalidade de proteger o circuito de tráfego visual do aeródromo e as manobras que antecedem a aproximação e o pouso. FIGURA 8.06 – Superfície Cônica DIMENSÕES CLASSE DO AERÓDROMO VFR IFR - NÃO PRECISÃO IFR - PRECISÃO CÓDIGO DE PISTA CÓDIGO DE PISTA CÓDIGO DE PISTA 1 2 3 e 4 1 e 2 3 e 4 1 e 2 3 e 4 D m 2000 2500 4000 3500 4000 3500 4000
  • 103.
    Aula 08 -Aeroportos Apostila de Aeroportos 103 PARÂMETROS CLASSE DO AERÓDROMO VFR IFR NÃO PRECISÃO IFR – PRECISÃO CÓDIGO DE PISTA CÓDIGO DE PISTA CÓDIGO DE PISTA 1 2 3 4 1 e 2 3 4 1 e 2 3 e 4 R 20 20 20 20 20 20 20 20 20 5% 5% 5% 5% 5% 5% 5% 5% 5% h m 35 55 75 100 60 75 100 60 100 Obs.: IFR-PRECISÃO CAT II e CAT III somente pistas 3 e 4. 1.13.Especificações para Superfícies Limitadoras de Obstáculos de Aeródromos 1.13.1 – Superfícies limitadoras de obstáculos de aeródromos aplicáveis às pistas para aproximação visual (VFR): • Superfície de Aproximação; • Superfície de Decolagem; • Superfície de Transição; • Superfície Horizontal Interna; e • Superfície Cônica. 1.13.2 – Superfícies limitadoras de obstáculos de aeródromos aplicáveis às pistas para aproximação por instrumento não -precisão (IFR- NPrecisão): • Superfície de Aproximação; • Superfície de Decolagem; • Superfície de Transição; • Superfície Horizontal Interna; e • Superfície Cônica.
  • 104.
    Aula 08 -Aeroportos Apostila de Aeroportos 104 1.13.3 – Superfícies limitadoras de obstáculos de aeródromos aplicáveis às pistas para aproximação por instrumento precisão (IFR-Precisão): • Superfície de Aproximação; • Superfície de Decolagem; • Superfície de Transição; • Superfície Horizontal Interna; • Superfície Cônica; • Superfície de Pouso Interrompido; • Superfície de Aproximação Interna; e • Superfície de Transição Interna. 1.14.Requisitos para Elaboração do PBZPA • Tipo de Operação do Aeródromo o VFR (Visual Flight Rules) o IFR (Instrument Flight Rules) IFR não-precisão IFR precisão • Código da Pista 1.14.1. Tipo de operação do aeródromo • VFR: Aeródromo com operação de aeronaves sujeitas às regras de vôo visual. • IFR não-precisão: Aeródromo com operação de aeronaves em aproximação sujeitas às regras de vôo por instrumento, que utilizam, para orientação, auxílios à navegação de não-precisão, tais como: NDB, VOR e Radar de Terminal. • IFR precisão Aeródromo com operação de aeronaves em aproximação sujeitas às regras de vôo por instrumento, que utilizam, para orientação, informações de azimute e rampa de planeio
  • 105.
    Aula 08 -Aeroportos Apostila de Aeroportos 105 que são fornecidas por auxílios à navegação de precisão, tais como: ILS ou radar de aproximação de precisão. 1.14.2. Código da pista • Comprimento Básico de Pista Requerido pela Aeronave: comprimento mínimo pista de necessário para a decolagem com peso máximo de decolagem certificado, ao nível médio do mar, em condições atmosféricas normais, vento nulo e gradiente longitudinal nulo de pista, conforme apresentado no manual de vôo da aeronave, determinado pela autoridade de certificação da aeronave, ou nas informações equivalentes do fabricante da mesma. CÓDIGO DA PISTA 1 2 3 4 COMPRIMENTO BÁSICO DA PISTA REQUERIDO PELA AERONAVE Menor que 800 m De 800 m até 1200 m exclusive De 1200 m até 1800 m exclusive 1800 ou maior 2. Plano de Zoneamento de Ruído Documento de aplicação genérica ou específica em aeródromos, que estabelece as restrições impostas ao aproveitamento das propriedades quanto ao uso e a ocupação dentro das zonas de ruído de um aeródromo. A legislação que rege sobre o plano de zoneamento de ruído de um aeródromo é estabelecida pelo RBAC 161 da ANAC, de 29 de setembro de 2011. Plano de Zoneamento de Ruído de Aeródromo – PZR: documento elaborado nos termos do RBAC 161, que tem como objetivo representar geograficamente a área de impacto do ruído aeronáutico decorrente das operações nos aeródromos e, aliado ao ordenamento adequado das atividades situadas nessas áreas, e ser o instrumento que
  • 106.
    Aula 08 -Aeroportos Apostila de Aeroportos 106 possibilita preservar o desenvolvimento dos aeródromos em harmonia com as comunidades localizadas em seu entorno. 2.1.Tipos de Plano de Zoneamento de Ruído - PZR Plano Básico de Zoneamento de Ruído – PBZR: Plano de Zoneamento de Ruído de Aeródromo composto pelas curvas de ruído de 75 e 65 e elaborado nos termos do RBAC 161, a partir de perfis operacionais padronizados, conforme disposto na Subparte C. Plano Específico de Zoneamento de Ruído – PEZR: Plano de Zoneamento de Ruído de Aeródromo composto pelas curvas de ruído de 85, 80, 75, 70 e 65 e elaborado nos termos deste RBAC, a partir de perfis operacionais específicos, conforme disposto na Subparte D. 2.2.Critérios para definição do tipo de PZR O operador de aeródromo deve utilizar o critério apresentado a seguir para definir a obrigatoriedade de aplicação de um Plano Específico de Zoneamento de Ruído – PEZR: (1) para aeródromos com média anual de movimento de aeronaves dos últimos 3 (três) anos superior a 7.000 (sete mil), deve ser aplicado um PEZR. (2) para os demais aeródromos, é facultado ao operador de aeródromo escolher o tipo de plano a ser elaborado, Plano Básico de Zoneamento de Ruído – PBZR ou PEZR. A ANAC poderá solicitar a elaboração de um PEZR a qualquer aeródromo. 2.2.1. PLANO BÁSICO DE ZONEAMENTO DE RUÍDO - PBZR O Plano Básico de Zoneamento de Ruído será definido pela curvas de ruído de 65 e 75, cujos parâmetros são definidos de acordo com a tabela C-1, e os usos compatíveis e incompatíveis na ocupação do solo serão definidos conforme as tabelas da Subparte E do RBAC 161.
  • 107.
    Aula 08 -Aeroportos Apostila de Aeroportos 107 TABELA C-1- Dimensões (em metros) das Curvas de Ruído de 75 e 65 Movimento anual Classe L1 R1 L2 R2 Até 400 1 70 30 90 60 De 401 a 2.000 2 240 60 440 160 De 2.001 a 4.000 3 400 100 600 300 De 4.001 a 7.000 4 550 160 700 500 2.2.2 PLANO ESPECÍFICO DE ZONEAMENTO DE RUÍDO – PEZR As cinco curvas de ruído que compõem o PEZR são calculadas por meio de programa computacional que utilize metodologia matemática apropriada para a geração de curvas, na métrica DNL. (1) O operador de aeródromo deve calcular as curvas de ruído para o sistema de pistas de pouso e decolagem previsto no planejamento, para a expansão da infraestrutura aeroportuária, considerando a estimativa do número de movimentos e tipos de aeronaves, ao final do seu horizonte de planejamento. (2) O operador de aeródromo que se enquadre nos critérios de exigibilidade de Plano Diretor – PDIR deve considerar o planejamento para a expansão da infraestrutura aeroportuária contido no respectivo plano.
  • 108.
    Aula 09 -Aeroportos Apostila de Aeroportos 108 AULA 09 1. O Terminal de Passageiros Conceituação: O Terminal de Passageiros (TPS ou TEPAX) de um aeroporto é a interface entre o “Lado Terra” e o “Lado Ar”. Isto é, faz a ponte entre os modos de transporte terrestre (acesso/egresso) e o transporte aéreo. A C E S S O V I Á R I O MEIO-FIO TPS PÁTIO CHEGADAS PASSAGEIROS ISOLADOS SAÍDAS EMBARQUE TRÂNSITO DESEMBARQUE PARTIDA CHEGADA A C E S S O A É R E O PASSAGEIROS EM GRUPOS COMPONENTES LADO TERRESTRE LADO AÉREO 1.1.Funções Básicas do Terminal • Mudança Meio de Transporte: terrestre para o aéreo e vice-versa; • Processamento e Acúmulo: passageiro e bagagens; e • Transferência: passageiros e bagagens entre aeronaves. 1.2.Concepções Básicas de um TPS 1.2.1. Forma do Terminal • LINEAR; • SATÉLITE; e • FINGER PIER. 1.2.2. Nível do Processamento • 1 NÍVEL – Embarque e Desembarque mesmo andar;
  • 109.
    Aula 09 -Aeroportos Apostila de Aeroportos 109 • 1 ½ NÍVEL – Embarque e Desembarque com Mezanino; e • 2 NÍVEIS – Embarque e Desembarque andares diferentes. 1.3.Fluxos no Terminal de Passageiros • Embarque: passageiros e cargas; • Desembarque: passageiros e cargas; e • Trânsito: passageiros e cargas. 1.3.1. Demanda do Transporte Aéreo Volume Anual de Passageiros , Passageiros no Dia Pico do Mês de Maior Movimento e Número de Passageiros na Hora Pico. (DAC, Curvas da INFRAERO, TPHP – Typical Peak Hour Passenger). 1.3.2. Dimensionamento do TPS (Doméstico/Internacional) • Área Global: adota-se índice global para área total operacional (FAA Internacional = 18 a 24 m2/PHP. STBA Internacional 12 a 25 m2/PHP e Doméstico = 6 a 15 m2/PHP. Alves – Doméstico 9 m2/PHP e Strongman – 4,5 m2/PHP em pequenos Aeroportos). • Área por Componentes: estimativa da área operacional de cada componente no embarque e desembarque. 1.4.Principais Componentes Operacionais 1.4.1. Embarque • Área do saguão de embarque • Área de processamento nos balcões • Área de pré-embarque • Área de pré-embarque internacional • Área de triagem e despacho de bagagens 1.4.2. Desembarque • Área do saguão de desembarque; • Área de desembarque internacional; • Área de restituição de bagagens; • Área para recepção de bagagens.
  • 110.
    Aula 09 -Aeroportos Apostila de Aeroportos 110 1.4.2.1. Trânsito • Área de trânsito. 1.4.2.2. Índices e Áreas • Selecionar o melhor local; • Detalhamento do local, posteriormente. 1.4.3. Parâmetros de Interesse • Selecionar; • Detalhamento do local, posteriormente. 1.4.4. Perfil do Passageiro • Tese ITA – POPTA (GOLDNER, 1991). 1.5.Bibliografia • IATA (1995) Airport Development Reference Manual, 8th Edition. • ALVES, C.J et all (2003) A Busca de Índices para Dimensionamento de Terminais Aeroportuários, XVII Congresso ANPET, Rio de Janeiro, p. 1003-1016. • ITA (1988) Dimensionamento Básico com o Momento de Maior Solicitação, Convênio INFRAERO. • GOLDNER, N. (1991) Uma Metodologia para Identificar o Perfil Operacional do Passageiro de Transporte Aéreo no Aeroporto, Dissertação de Tese de Mestrado, São José dos Campos.
  • 111.
    AIRPORT SERVICE ROAD ROADWAY TAXIWAY FIG. 1EXEMPLE OF PIER CONCEPT (CENTRALIZED TERMINAL) PLAN VIEW PASSENGER TERMINAL COMPLEX Terminal Concepts - General FIGURA 9.01 - International Air Transport Association Apostila de Aeroportos PARKING LIMIT LINE TERMINAL LANDSIDE AUTO PARKING AIRSIDE TAXIWAY TAXIWAY PIER CONCEPT FIG. 1 EXEMPLE OF PIER CONCEPT (CENTRALIZED TERMINAL) PASSENGER TERMINAL COMPLEX Terminal Concepts - General International Air Transport Association Aula 09 - Aeroportos 111 AIRSIDE CORRIDOR TAXIWAY FIG. 1 EXEMPLE OF PIER CONCEPT (CENTRALIZED TERMINAL) ATRM 3.4.1.
  • 112.
    FIGURA 9.02 -Airport Terminals Reference Manual Apostila de Aeroportos Airport Terminals Reference Manual Aula 09 - Aeroportos 112
  • 113.
    Aula 09 -Aeroportos Apostila de Aeroportos 113 AUTO PARKING AIRPORT SERVICE ROAD TERMINAL LANDSIDE LINEAR CONCEPT FIG. 3 EXAMPLE OF LINEAR CONCEPT (CENTRALIZED TERMINAL) PLAN VIEW PASSENGER TERMINAL COMPLEX Terminal Concept - General ATRM 3.4.1 PARKING LIMIT LINE AIRSIDE CORRIDOR AIRSIDE FIGURA 9.03 - International Air Transport Association
  • 114.
    Aula 09 -Aeroportos Apostila de Aeroportos 114 AUTO PARKING AIRPORT SERVICE ROAD LANDSIDE LINEAR CONCEPT FIG. 4 EXAMPLE OF LINEAR CONCEPT (DECENTRALIZED TERMINAL) PASSENGER TERMINAL COMPLEX Terminal Concept - General ATRM 3.4.1 PARKING LIMIT LINE AIRSIDE EFFECTIVE: DEC. 1976 TERMINAL FIGURA 9.04 - Airport Terminals Reference Manual
  • 115.
    FIGURA 9.05 -International Air Transport Association FIG. 5 EXEMPLE OF TRANSPORTER CONCEPT (CENTRALIZED TERMINAL REMOTE APRON) PASSENGER TERMINAL COMPLEX Terminal Concepts - General PLAN VIEW AIRPORT SERVICE ROADAIRSIDE CORRIDOR Apostila de Aeroportos International Air Transport Association FIG. 5 EXEMPLE OF TRANSPORTER CONCEPT (CENTRALIZED TERMINAL REMOTE APRON) PASSENGER TERMINAL COMPLEX Terminal Concepts - General AIRSIDE TERMINAL AUTO PARKING LANDSIDE TRANSPORTER CONCEPT TRANSPORTER (more) AIRPORT SERVICE TRANSPORTER ROUTE PARKING LIMIT LINE Aula 09 - Aeroportos 115 FIG. 5 EXEMPLE OF TRANSPORTER CONCEPT (CENTRALIZED TERMINAL REMOTE APRON) ATRM 3.4.1.
  • 116.
    FIG. 7 EXEMPLEOF TERMINAL UNIT ARRANGEMENTS PASSENGER TERMINAL COMPLEX Terminal Concept - General PLAN VIEW LEGEND: 1 AIRFIELDFACILITIES 2 3 4 WALKING DISTANCES PASSENGER VOLUMES KERB FACTORS FIGURA 9.06 - International Air Transport Association Apostila de Aeroportos FIG. 7 EXEMPLE OF TERMINAL UNIT ARRANGEMENTS PASSENGER TERMINAL COMPLEX Terminal Concept - General (more) FUTURE AIRSIDE 1 2 AIRFIELDFACILITIES WALKING DISTANCES PASSENGER VOLUMES International Air Transport Association Aula 09 - Aeroportos 116 ATRM3.4.1. FUTURE LANDSIDE UNIT 'B' UNIT 'A' 3 4
  • 117.
    Aula 09 -Aeroportos Apostila de Aeroportos 117 FIGURA 9.07 - Airport Terminals Reference Manual
  • 118.
    Aula 09 -Aeroportos Apostila de Aeroportos 118 FIGURA 9.08 - Airport Terminals Reference Manual
  • 119.
    Aula 09 -Aeroportos Apostila de Aeroportos 119 Passenger Terminal FIGURA 9.09 - Illustration of a one Level Passenger Terminal Building
  • 120.
    Aula 09 -Aeroportos Apostila de Aeroportos 120 FIGURA 9.10 - Illustration of a 1½ Level Passenger Terminal Building
  • 121.
    Aula 09 -Aeroportos Apostila de Aeroportos 121 FIGURA 9.11 - Illustration of a Two Level Passenger Terminal Building
  • 122.
    Aula 09 -Aeroportos Apostila de Aeroportos 122 Tabela 1: Componentes principais do TPS Componentes Operacionais e Não Operacionais Classificação Embarque Desembarque Operacionais meio-fio de embarque portão de desembarque saguão de embarque saúde dos portos* (ex: epidemias) check-in inspeção fito-sanitária* (ex: plantas comidas) controle de passaportes controle de passaportes* vistoria de segurança alfândega* sala de pré-embarque saguão de desembarque portão de embarque meio-fio de desembarque Não Operacionais lojas aluguel de veículos lanchonetes / restaurantes reservas de hotéis bancos agências de turismo telefones informações sanitários sanitários *Componentes exclusivos de aeroportos com operação internacional Fonte: Feitosa, 2000
  • 123.
    Aula 09 -Aeroportos Apostila de Aeroportos 123 XVII Congresso de Pesquisa e Ensino em Transportes Tabela 2: Índices de dimensionamento da ICAA COMPONENTE NÍVEL DE SERVIÇO (m²/ocupante) A B C D E F Check-in 1,6 1,4 1,2 1,0 0,8 Componente em colapso (valores < E) Espera / Circulação 2,7 2,3 1,9 1,5 1,0 Sala de pré-embarque 1,4 1,2 1,0 0,8 0,6 Restituição de bagagens (excluído o equipamento) 1,6 1,4 1,2 1,0 0,8 Pré-inspeção no desembarque intern. 1,4 1,2 1,0 0,8 0,7 NÍVEL DE SERVIÇO DESCRIÇÃO A Nível de serviço excelente, fluxos livres, sem atrasos, rotas diretas, excelente nível de conforto. B Alto nível de serviço, fluxos estáveis, alto nível de conforto. C Bom nível de serviço, fluxos estáveis, processamento aceitável, subsistema em balanço. D Nível de serviço adequado, fluxos instáveis, atrasos, condições aceitáveis por pequenos períodos. E Nível de serviço inaceitável, fluxos instáveis, subsistemas desbalanceados, capacidade limite do sistema. F Sistema em caos, congestionamento e atrasos inaceitáveis. Fonte: ICAA. 1979 / Transport Canada. 1979
  • 124.
    Aula 09 -Aeroportos Apostila de Aeroportos 124 XVII Congresso de Pesquisa e Ensino em Transportes Tabela 3: Quadro Comparativo (sala de pré-embarque) SALA DE PRÉ-EMBARQUE Método Nível de Serviço Unidade Alves A (Internacional) 1,50 m²/pax B ( Doméstico) 1,30 m²/pax C (Doméstico) 1,10 m²/pax D (Regional) 0,90 m²/pax Braaksma Sentado = 2,30 m²/pax Em pé = 1,40 m²/pax FAA Sentado = 1,40 m²/pax Em pé = 1,00 m²/pax ICAA A (Excelente) 1,40 m²/pax B (Alto) 1,20 m²/pax C (Bom) 1,00 m²/pax D (Adequado) 0,80 m²/pax E (Inaceitável) 0,60 m²/pax F (Colapso) < 0,60 m²/pax CECIA 1,50 m²/pax TRB Padrão (IATA) 0,80 m²/pax por assento na aeronave Colapso (IATA) < 0,60 m²/pax para espera > 15 min Padrão (FAA) 0,65 a 1,00 m²/pax por assento na aeronave Padrão (FAA) < 1,00 a 1,50 m²/pax STBA 1,00 a 1,50 m²pax Widmer & Silva Regional 0,80 a 1,00 m²/pax
  • 125.
    Aula 09 -Aeroportos Apostila de Aeroportos 125 XVII Congresso de Pesquisa e Ensino em Transportes Tabela 4: Quadro Comparativo (área de restituição de bagagens) ÁREA DE RESTITUIÇÃO DE BAGAGENS Método Nível de Serviço Unidade Alves A (Internacional) 2,00 m²/pax B ( Doméstico) 1,60 m²/pax C (Doméstico) 1,20 m²/pax D (Regional) 0,90 m²/pax Braaksma ------- 1,40 m²/pax FAA ------- Espaço de 4 a 5 m nas adjacências da esteira, somente para a espera de bagagens. ICAA A (Excelente) 1,60 m²/pax B (Alto) 1,40 m²/pax C (Bom) 1,20 m²/pax D (Adequado) 1,00 m²/pax E (Inaceitável) 0,80 m²/pax F (Colapso) < 0,80 m²/pax CECIA ------- Método Analítico de Zaniewski TRB Alto a excelente (IATA) > 1,40 m²/pax para qualquer tempo de espera Colapso (IATA) < 0,80 m²/pax para espera > 15 min Pico de 20 minutos (FAA) 0,60 m²/pax para qualquer tempo de espera STBA ------- 3m entre a esteira e a parede 6m entre duas esteiras Widmer & Silva Regional 0,80 a 1,00 m²/pax Braaksma – Autor ICAA – Organização do Canadá CECIA – Antigo IAC STBA – Organização Francesa
  • 126.
    Aula 09 -Aeroportos Apostila de Aeroportos 126 XVII Congresso de Pesquisa e Ensino em Transportes Tabela 5: Quadro Comparativo (saguão de embarque) SAGUÃO DE EMBARQUE Método Nível de Serviço Unidade (m²/usuário) Alves A (Internacional) 2,25 B ( Doméstico) 1,80 C (Doméstico) 1,45 D (Regional) 1,30 Braaksma Saguão principal = 1,40 Saguão secundário = 2,30 FAA 1,90 ICAA A (Excelente) 2,70 B (Alto) 2,30 C (Bom) 1,90 D (Adequado) 1,50 E (Inaceitável) 1,00 F (Colapso) < 1,00 CECIA 5,00 TRB Adequado 1,20 Colapso < 1,00 para espera > 15 min. STBA 2,00 Widmer & Silva Regional 3,00
  • 127.
    Aula 09 -Aeroportos Apostila de Aeroportos 127 XVII Congresso de Pesquisa e Ensino em Transportes Tabela 6: Quadro comparativo (check-in) CHECK-IN Método Nível de Serviço Largura do Balcão (m/posição) Profundidade (m) Fila (m/pessoa) Circulação (m) Alves A (Internacional) 3,00 4,50 0,70 6,00 B (Doméstico) 2,50 4,00 0,60 4,50 C (Doméstico) 2,00 3,50 0,50 3,00 D (Regional) 1,50 3,00 0,40 1,50 Método Nível de Serviço Área de filas (m²/pessoa) Fila (m/pessoa) Circulação (m²/pessoa) Braaksma 1,10 0,70 2,30 Método Nível de Serviço Largura do Balcão (m/posição) Profundidade (m) Fila (m/pessoa) Circulação (m) FAA 1,50 3,00 0,90 6,00 a 9,00 Método Nível de Serviço Área de filas (m²/pessoa) ICAA A (Excelente) 1,60 B (Alto) 1,40 C (Bom) 1,20 D (Adequado) 1,00 E (Inaceitável) 0,80 F (Colapso) < 0,80 Método Nível de Serviço Área de filas (m²/pessoa) CECIA Método Analítico de Zaniewski Método Nível de Serviço Área (m²/pessoa) TRB A (excelente) IATA > 1,60 E (Inadequado) IATA < 1,00 para espera maior que 15 min. Colapso (IATA) < 0,80 para espera maior que 15 min. Padrão (FAA) Balcão multifuncional = 1,40 - 2,20 Padrão (FAA) Somente recepção de bagagem = 1,10 - 0,70 Padrão (FAA) Somente verificação de passagens = 0,40 - 0,70 Método Nível de Serviço Largura do Balcão Profundidade (m) Comprimento para Fila (m) STBA 1,50 a 2,00 3,00 a 4,00 10,00. exceto a circulação Método Nível de Serviço Área (m²/pessoa) Widmer & Silva Regional 3,00. incluindo a circulação
  • 128.
    Aula 09 -Aeroportos Apostila de Aeroportos 128 FIGURA 9.12 - Fluxo de Passageiros e Bagagens no TPS
  • 129.
    Aula 09 -Aeroportos Apostila de Aeroportos 129 FIGURA 9.13 - Airport Terminals Reference Manual
  • 130.
    Aula 09 -Aeroportos Apostila de Aeroportos 130 FIGURA 9.14 - Airport Terminals Reference Manual
  • 131.
    Aula 09 -Aeroportos Apostila de Aeroportos 131 Dimensionamento de Terminal de Passageiros Método de Ana Glória Medeiros, ITA, 2004. Fator de Hora-Pico de Aeroportos Índices de concentração propostos pela FAA Faixa de demanda anual de passageiros Índice de Concentração – FAA (%) Abaixo 100 mil 0,200 100 mil até 499,99mil 0,130 500 mil até 999,99mil 0,080 1 milhão até 9,9 milhões 0,050 10 milhões até 19,9 milhões 0,045 20 milhões até 29,9 milhões 0,040 Acima de 30 milhões 0,035 Proposta de índices de concentração para os aeroportos brasileiros Faixa de demanda anual de passageiros Índice de Concentração – Brasil Limite inferior faixa (%) Limite superior faixa (%) Abaixo 100 mil 0,399 0,169 100 mil até 399,99mil 0,118 0,084 400 mil até 999,99mil 0,070 0,064 1 milhão até 2,99 milhões 0,051 0,046 3 milhões até 7,9 milhões 0,038 0,036 Acima de 30 milhões 0,027 0,024 Fonte: ANAC - 2007 ARÉA TOTAL DO TPS Nível de serviço Índices de dimensionamento (m²/pax) Tipo de aeroporto Internacional Doméstico Regional A – Alto 25,00 18,00 15,00 B – Bom 22,00 15,00 12,00 C – Regular 18,00 12,00 10,00 SAGUÃO DE EMBARQUE Nível de serviço Índices de dimensionamento (m²/usuário) Tipo de aeroporto Internacional Doméstico Regional A – Alto 2,50 2,20 1,80 B – Bom 2,00 1,80 1,50 C – Regular 1,60 1,40 1,20
  • 132.
    Aula 09 -Aeroportos Apostila de Aeroportos 132 SAGUÃO DE EMBARQUE Nível de serviço Quantidade de assentos (% do nº de usuário) Se tiver sala de pré- embarque Se não tiver sala de pré-embarque A – Alto 25 70 B – Bom 15 60 C – Regular 10 50 SALA DE PRÉ-EMBARQUE Nível de serviço Índices de dimensionamento (m²/pax) Tipo de aeroporto Internacional Doméstico Regional A – Alto 1,60 1,40 1,20 B – Bom 1,40 1,20 1,00 C – Regular 1,10 1,00 0,80 SALA DE PRÉ-EMBARQUE Nível de serviço Largura do corredor de acesso ao portão de embarque (m) Tipo de aeroporto Internacional Doméstico Regional A – Alto 3,00 2,50 2,00 B – Bom 2,50 2,00 1,50 C – Regular 2,00 1,50 1,00 SALA DE PRÉ-EMBARQUE Nível de serviço Quantidade de assentos (% do nº de passageiros) A – Alto 80 B – Bom 70 C – Regular 60 CHECK IN AEROPORTO INTERNACIONAL Nível de serviço Largura do balcão (m/posição) Profund. (m) Fila (m/pax) Nº máximo de pax na fila/balcão Tempo de atend./pax (min) Circ. (m) Área (m²/balcão) Vôo Int. Vôo dom. A – Alto 2,50 4,00 1,00 8 2-3 1-2 6,00 45,00 B – Bom 2,00 3,50 0,90 10 2-3 1-2 5,00 35,00 C – Regular 1,50 3,00 0,80 12 2-3 1-2 4,00 24,90
  • 133.
    Aula 09 -Aeroportos Apostila de Aeroportos 133 CHECK IN AEROPORTO DOMÉSTICO Nível de serviço Largura do balcão (m/posição) Profund. (m) Fila (m/pax) Nº máximo de pax na fila/balcão Tempo de atend./pax (min) Circ. (m) Área (m²/balcão) A – Alto 2,00 3,50 0,90 8 1-2 5,00 31,40 B – Bom 1,80 3,00 0,80 10 1-2 4,00 27,00 C – Regular 1,40 2,80 0,70 12 1-2 3,00 19,88 CHECK IN AEROPORTO REGIONAL Nível de serviço Largura do balcão (m/posição) Profund. (m) Fila (m/pax) Nº máximo de pax na fila/balcão Tempo de atend./pax (min) Circ. (m) Área (m²/balcão) A – Alto 1,80 3,00 0,80 8 1-2 4,00 24,12 B – Bom 1,50 2,80 0,70 10 1-2 3,00 19,20 C – Regular 1,30 2,50 0,60 12 1-2 2,00 15,21 ÁREA PARA VENDAS E RESERVAS DE BILHETES Nível de serviço Índice de dimensionamento (m²/balcão) Tipo de aeroporto Internacional Doméstico Regional A – Alto 14,04 9,90 6,48 B – Bom 12,30 8,16 5,70 C – Regular 9,84 6,90 5,04 BALCÔES PARA VENDAS E RESERVAS DE BILHETES Porcentagem de número de balcões para check-in Tipo de aeroporto Internacional Doméstico Regional 35 25 15 MÍNIMO DE UM BALCÃO DE ATENDIMENTO ÁREA PARA TRIAGEM E DESPACHO DE BAGAGENS Índices de dimensionamento (m²/vôo) Tipo de aeroporto Internacional Doméstico Regional 40,00 40,00 20,00 ÁREA PARA TRIAGEM E DESPACHO DE BAGAGENS Índices de dimensionamento (m²/vôo) Tipo de aeroporto Internacional Doméstico Regional 40,00 40,00 20,00
  • 134.
    Aula 09 -Aeroportos Apostila de Aeroportos 134 ÁREA DE VISTORIA DE SEGURANÇA Tipo de aeroporto Internacional Doméstico Regional 20,00 m²/módulo 16,00 m²/modulo 13,50 m²/modulo Tempo de atendimento por pax (seg) Processamento (pax/h) 20 180 ÁREA DE VISTORIA DE PASSAPORTES Aeroporto Internacional Nível de serviço Índice de dimensionamento (m²/pax) A – Alto 1,20 B – Bom 1,00 C – Regular 0,80 ÁREA DE VISTORIA DE PASSAPORTES Aeroporto Internacional Balcões para atendimento de passageiros Nº de agents (un.) Área (m²) Tempo médio de atendimento (seg) Processamento (pax/h) 2 8,00-14,70 30 240 4 15,00-27,30 30 480 SAGUÃO DE DESEMBARQUE Nível de serviço Índices de dimensionamento (m²/usuário) Tipo de aeroporto Internacional Doméstico Regional A – Alto 2,00 1,80 1,50 B – Bom 1,80 1,60 1,20 C – Regular 1,50 1,20 1,00 SAGUÃO DE DESEMBARQUE Nível de serviço Quantidade de assentos (% do número de usuários) A – Alto 15 B – Bom 10 C – Regular 5 ÁREA DE RESTITUIÇÃO DE BAGAGENS Nível de serviço Índices de dimensionamento (m²/pax) Tipo de aeroporto Internacional Doméstico Regional A – Alto 2,00 1,60 1,30 B – Bom 1,60 1,40 1,10 C – Regular 1,30 1,10 0,80
  • 135.
    Aula 09 -Aeroportos Apostila de Aeroportos 135 ÁREA DE RESTITUIÇÃO DE BAGAGENS Tipo de vôo Quantidade de bagagens/pax % de carrinhos/pax Internacional 1,2 80 Doméstico 0,9 70 Regional 0,5 60 ÁREA DE ALFÂNDEGA Aeroporto Internacional Nível de serviço Índice de dimensionamento (m²/pax) A – Alto 1,50 B – Bom 1,20 C – Regular 0,90 ÁREA DE ALFÂNDEGA Aeroporto Internacional Balcões para atendimento de passageiros Nº de agents (un.) Área (m²) Tempo médio de atendimento (min) Processamento (pax/h) 2 17,48-29,16 2 60 SANITÁRIOS MASCULINOS Índices de dimensionamento (m²) Nível de serviço Lavatório B. Sanitária Mictório Circulação A – Alto 1,40 2,00 1,10 2,38 B – Bom 1,20 1,80 0,90 2,11 C – Regular 1,00 1,50 0,70 1,55 SANITÁRIOS FEMININOS Índices de dimensionamento (m²) Nível de serviço Lavatório B. Sanitária Circulação A – Alto 1,40 2,00 1,85 B – Bom 1,20 1,80 1,68 C – Regular 1,00 1,50 1,20
  • 136.
    Aula 01 -Aeroportos Apostila de Aeroportos 136 MÓDULO II AULA 01 1. Pavimento De Aeroportos 1.1.Dimensionamento de Pavimentos Dimensionar um pavimento significa determinar a sua espessura total, bem como as espessuras de cada uma de suas camadas e especificar de quais materiais devem as mesmas ser constituídas. 1.2. Conceitos Fundamentais • Pavimento: Estrutura constituída de uma ou mais camadas de materiais preparados ou beneficiados. • Funções do Pavimento: o Distribuir as cargas do tráfego o Fornecer condições de conforto e segurança operacionais o Resistir aos esforços horizontais (desgaste) Tipos de Pavimentos • Pavimento Flexível • Pavimento Rígido
  • 137.
    Aula 01 -Aeroportos Apostila de Aeroportos 137 1.3. Características das Aeronaves: Tipos de Trem de Pouso 1.4. Mecânica dos Pavimentos CARREGAMENTO POR RODA 95% DO PESO BRUTO DA AERONAVE É CARREGADO PELO TREM DE POUSO PRINCIPAL Revestimento Base Subleito Pavimento Flexível Placa Sub-base Subleito Pavimento Rígido 5% 95% rodas duplas rodas simples rodas duplas em tandem trens de pouso especiais
  • 138.
    Aula 01 -Aeroportos Apostila de Aeroportos 138 1.5.Dimensionamento de Pavimentos Método – Federal Aviation Administration AC 150/5320 – 6E, 30 de setembro de 2009. Esta “Advisory Circular” cancelou a AC anterior (150/5320 - 6D de 7/7/95), que utilizava no dimensionamento de pavimentos aeroportuários o conceito da aeronave de projeto e o uso de ábacos das aeronaves. A nova AC passou a adotar o programa FAARFIELD desenvolvido para a FAA (disponível para download gratuito no website), que adota o conceito de dimensionamento por camadas elásticas e leva em conta o efeito acumulativo de todas as aeronaves sobre o pavimento em estudo, não se utilizando mais do conceito da aeronave de projeto. TABLE 3-10. Exemplo de um Tráfego de Aeronaves No. Name Gross Weight, lb Annual Departures Annual Growth, % 1 A320-100 150,796 600 0.00 2 A340-600 std 805,128 1,000 0.00 3 A340-600 std Belly 805,128 1,000 0.00 4 A380-800 1,239,000 300 0.00 5 B737-800 174,700 2,000 0.00 6 B747-400 877,000 400 0.00 7 B747-400ER 913,000 300 0.00 8 B757-300 271,000 1,200 0.00 9 B767-400 ER 451,000 800 0.00 10 B777-300 ER 777,000 1,000 0.00 11 B787-8 478,000 600 0.00 TABLE 3-11. Informação da Estrutura do Pavimento Projetado para o Exemplo No. Type Thickness, in Modulus, psi Poisson’s Ratio 1 P-401/ P-403 AC Surface 5.00 200,000 0.35 2 P-401/ P-403 St (flex) 11.06 400,000 0.35 3 P-209 Cr Ag 18.78 51,440 0.35 4 Subgrade 0.00 12,000 0.35
  • 139.
    Aula 01 -Aeroportos Apostila de Aeroportos 139 Resultado apresentado pela tela do programa FAARFIELD no item “Structure” ao final do dimensionamento do pavimento (Design Structure) do Exemplo. O programa possui um roteiro que explica como se deve utilizá-lo no dimensionamento de pavimentos aeroportuários no item “Demonstration”. O relatório do resultado do dimensionamento pode ser obtido no item “Notes”, onde se poderá imprimir ou copiar o relatório para o editor de textos.
  • 140.
    Aula 01 -Aeroportos Apostila de Aeroportos 140 Para um melhor aprendizado dos alunos que estão se iniciando no projeto de pavimentos aeroportuários é interessante o conhecimento do método do “Corpo de Engenheiros Americanos” (USACE), que era utilizado anteriormente e que constava da AC 150/5320 – 6D, onde se emprega o conceito da aeronave de projeto e se utiliza os ábacos estabelecidos para as diversas aeronaves de forma genérica ou específica. MÉTODO DO CORPO DE ENGENHEIROS AMERICANOS (USACE) 1. Volume de tráfego anual (decolagens) 2. Peso Máximo de decolagem 3. Configuração do trem de pouso das aeronaves 4. Determinar a aeronave de projeto (maior espessura de pavimento) 5. Capacidade de suporte do subleito • Índice de Suporte Califórnia – CBR • Módulo de Reação do Subleito – K 6. Resistência à Flexão do Concreto • Módulo de Ruptura do Concreto – MR 7. Determinar o número equivalente anual de decolagens para aeronave de projeto Log R1 = Log R2 x (W2/W1)1/2 R1 – Nº equivalente anual de decolagens da Aeronave de projeto R2 – Nº anual de decolagens das Aeronaves expresso em trem de pouso da Aeronave de projeto W1 – Carga da Roda da Aeronave projeto W2 – Carga da Roda das Aeronaves Determinação da Equivalência de Partidas Anuais para a Aeronave de Projeto Fatores de conversão para configuração de trem de pouso da aeronave de projeto – (FAA) RODA SIMPLES RODA DUPLA 0.8 RODA SIMPLES DUPLO TANDEM 0.5 RODA DUPLA DUPLO TANDEM 0.6 DUPLO DUPLO TANDEM DUPLO TANDEM 1.0 DUPLO TANDEM RODA SIMPLES 2.0 DUPLO TANDEM RODA DUPLA 1.7 RODA DUPLA RODA SIMPLES 1.3 DUPLO DUPLO TANDEM RODA DUPLA 1.7 DE PARA MULTIPLICAR POR
  • 141.
    Aula 01 -Aeroportos Apostila de Aeroportos 141 Exercício Projetar um pavimento de um aeroporto para a seguinte previsão de tráfego: AERONAVE TIPO DE TREM DE POUSO PREVISÃO DAS DECOLAGENS ANUAIS PESO MÁXIMO DECOLAGEM (LBS) 727 - 100 DUPLO 3760 160000 727 - 200 DUPLO 9080 190500 707 - 320 - B DUPLO TANDEM 3050 327000 DC - 9 - 30 DUPLO 5800 108000 CV - 880 DUPLO TANDEM 400 184500 737 - 200 DUPLO 2650 115500 L - 1011 - 100 DUPLO TANDEM 1710 450000 747 - 100 DUPLO DUPLO TANDEM 85 700000 SOLUÇÃO: 1.1.1.1. Foi determinada a espessura do pavimento para cada aeronave da previsão, através das curvas de projeto e chegou-se à conclusão que o 727 – 200 requer a maior espessura do pavimento. 2.2.2.2. 727 – 200 Trem de pouso de roda dupla Todas as outras aeronaves da previsão deverão ser grupadas em termos de configuração de roda dupla. 3.3.3.3. Assim as frequências serão transformadas, aplicando-se os coeficientes, para um só tipo de trem de pouso. 4.4.4.4. Chegamos aos valores da tabela seguinte. 5.5.5.5. Assim, o pavimento será projetado para 16000 partidas anuais de uma aeronave de roda dupla com 190500 lbs de peso. No entanto, o projeto deve servir para a aeronave mais pesada, dentre as que fazem parte do tráfego, no que diz respeito à profundidade de compactação, a espessura do revestimento, à drenagem, etc.
  • 142.
    Aula 01 -Aeroportos Apostila de Aeroportos 142 16241 737 - 200 L 1011 - 100 747 - 100 TREM DE POUSO TREM DE POUSO AERONAVE DE PROJETO DUPLODUPLO AERONAVE 727 - 100 CV 880 727 - 200 DUPLO DUPLO TANDEM DUPLO DUPLO TANDEM DUPLO DUPLO TANDEM CARREGAMENTO POR RODA AERONAVE PROJETO DECOLAGENS ANUAIS DE AERONAVES DE PROJETO LogR1 = log3760 (38000/45240) 1/2 = 1891 45240 160000 x 0,95/4 = 38000 DECOLAGENS EQUIPAMENTOS TREM DUPLO 3760 - 3760 115500 x 0,95/4 = 27430 DUPLO DUPLO CARREGAMENTO POR RODA 85 x 1,9 = 145 300000 x 0,95/8 = 35625 DUPLO 45240 LogR1 = log680 (21910/45240)1/2 = 94 LogR1 = log2650 (27430/45240) 1/2 = 463 LogR1 = log2907 (35625/45240) 1/2 = 1184 LogR1 = log145 (35625/45240) 1/2 = 83 45240400 x 1,7 = 680 184500 x 0,95/8 = 21910 45240 45240 300000 x 0,95/8 = 35625 1910 x 1,7 = 2907 2650 - 2650 DC 9 - 30 DUPLO DUPLO DUPLO DUPLO TOTAL 45240 45240 45240 9080 LogR1 = log5800 (25650/45240) 1/2 = 682 LogR1 = log5185 (38830/45240) 1/2 = 2764 9080 - 9080 3050 x 1,7 = 5185 5800 - 5800 190500 x 0,95/4 = 45240 327000 x 0,95/8 = 38830 108000 x 0,95/4 = 25650 DUPLO 707 - 320 B DUPLO TANDEM
  • 143.
    Aula 01 -Aeroportos Apostila de Aeroportos 143 FIGURA 1.01 - Projeto e seção típicas para pavimentos de pistas NOTAS: LARGURAS DA PISTA DE ACORDO COM A CIRCULAR CONSULTIVA APLICÁVEL; DECLIVES TRANSVERSAIS DE ACORDO COM A CIRCULAR CONSULTIVA APLICÁVEL; ESPESSURA DO REVESTIMENTO, DA BASE, PCC, ETC. DE ACORDO COM O INDICADO NO PROJETO; MÍNIMO DE 12" (30 cm) ATÉ O MÁXIMO ADMINISSÍVEL DE 30" (90 cm); PARA PISTAS COM LARGURA SUPERIOR A 150' (45,7 m) HAVERÁ UM AUMENTO NESTA DIMENSÃO. 1 2 3 4 5 LEGENDA: ESPESSURA = T VARIAÇÃO DA ESPESSURA = T 0,7T ESPESSURA = 0,9T ESPESSURA = 0,7T 200' 200' (61m) PI PI (61m) TRANSIÇÕES 200' (61m) 200' (61m) 200' (61m) TRANSIÇÕES A A TRANSIÇÕES SUB-BASE BASE LARGURA DA PISTA SUPERFÍCIEESPESSURA MÍNIMA DO REVESTIMENTO 2" (5cm) PCC 2 1 3 4 5 4 56 25' (7,6 m)
  • 144.
    Aula 01 -Aeroportos Apostila de Aeroportos 144 1.6.Dimensionamento e Pavimento Flexível 1.6.1. Camadas do Pavimento a) Revestimento: NSMA 85–2 (Norma de Sistema do Ministério da Aeronáutica) b) Base: NSMA 85–2 c) Sub-base: NSMA 85–2 d) Subleito: NSMA 85–2 1.6.2. Dados a Serem Considerados no Projeto a) Valor do CBR do subleito b) Valor do CBR da sub-base c) Peso bruto da aeronave de projeto d) Frequência anual de decolagens • As curvas indicam a espessura total do pavimento necessária e a espessura do revestimento (asphalt surfaces). A tabela 3-9 indica a espessura mínima da camada de base para o tipo de aeronave e intervalo de carga de projeto. • No caso de partidas anuais que excedem 25000 a espessura total do pavimento deve ser aumentado de acordo coma tabela 3-5 e a superfície betuminosa de 1 polegada. • As curvas são usadas para determinar a espessura total do pavimento crítico T, e as exigências para a espessura da camada de superfície. • O fator 0,9T para o pavimento não crítico se aplica à base e à sub-base; a espessura da camada de revestimento deve ser aquela que é apresentada nas curvas de projeto (ver recomendações do AC). • A espessura mínima do total de pavimento não deve ser menor do que a espessura total do pavimento requerido para um subleito de CBR 20 na curva de projeto apropriada.
  • 145.
    Aula 01 -Aeroportos Apostila de Aeroportos 145 1.7. Espessura Mínima da Base Lbs in mm 100 150 4 6 Duplo tandem 100000 - 250000 250000 - 400000 6 8 150 200 6 150 DC - 10/ L 1011 400000 - 600000 B - 747 400000 - 600000 600000 - 850000 6 8 150 200 757 - 767 200000 - 400000 C - 130 75000 - 125000 125000 - 175000 4 6 100 150 30000 - 50000 50000 - 75000Roda simples AERONAVE INTERVALO CARGA-PROJETO ESPESSURA MÍNIMA BASE Roda dupla 50000 - 100000 100000 - 200000 6 8 150 200 8 200
  • 146.
    Aula 01 -Aeroportos Apostila de Aeroportos 146 1.8. Tabelas de Equivalência para projeto de reforç • Sub-base: FATOR BETUMINOSO 1,7 - 2,3 MATERIAL BETUMINOSO MISTURADO A FRIO BASE DE SOLO CIMENTO 1,5 - 2,0 BASE DE MACADAME 1,4 - 2,0 1,5 - 1,7 BASE TRATADA COM CIMENTO 1,6 - 2,3 • Base: MATERIAL FATOR BETUMINOSO 1,2 - 1,6 BETUMINOSO MISTURADO A FRIO 1,0 - 1,2 BASE TRATADA COM CIMENTO 1,2 - 1,6
  • 147.
    Aula 01 -Aeroportos Apostila de Aeroportos 147 FIGURA 1.02 - Curvas de projeto de pavimentos flexíveis para áreas críticas – Trem de pouso de Roda Simples.
  • 148.
    Aula 01 -Aeroportos Apostila de Aeroportos 148 FIGURA 1.03 - Projeto de curvas para áreas críticas de pavimento flexível – Roda Dupla
  • 149.
    Aula 01 -Aeroportos Apostila de Aeroportos 149 FIGURA 1.04 - Curvas de projeto de pavimentos flexíveis para áreas críticas – Trem de pouso Duplo Tandem
  • 150.
    Aula 01 -Aeroportos Apostila de Aeroportos 150 FIGURA 1.05 - Curvas do projeto de pavimentos flexíveis para áreas críticas – B747-100, SR, 200 B, C, F
  • 151.
    Aula 01 -Aeroportos Apostila de Aeroportos 151 FIGURA 1.06 - Curvas de projeto de pavimentos flexíveis para áreas críticas – L-1011-100, 200
  • 152.
    Aula 01 -Aeroportos Apostila de Aeroportos 152 1.9.Pavimentos para Aeronaves Leves • Generalidades: a) Os pavimentos para aeronaves leves podem ser definidos como instalações de pouso que visam acomodar aeronaves particulares ou outras menores que estejam engajadas em atividade não programadas como, por exemplo, na agricultura ou em voos de instrução. Esses pavimentos não serão utilizados por aeronaves que excedam o peso bruto de 30000 libras (13000Kg) e, em muitos casos, essas aeronaves não excederão sequer as 12500 libras (5700Kg). b) Alguns aeroportos podem não precisar de áreas operacionais pavimentadas. As condições do terreno podem ser aceitáveis para o desenvolvimento de uma superfície gramada adequada para as operações das aeronaves leves. É possível construir uma pista de solo estabilizado gramado, melhorando a estabilidade do solo com a adição de agregado antes do desenvolvimento do gramado. c) Na maioria das áreas, entretanto, não é possível obter e manter uma superfície gramada estável, devido às condições adversas do tempo ou alta densidade do tráfego. d) Os pavimentos projetados para servir aeronaves de menos de 30.000 libras (13.000Kg) de peso bruto, podem ser do tipo flexível ou rígido.
  • 153.
    Aula 01 -Aeroportos Apostila de Aeroportos 153 FIGURA 1.07 – Seções típicas de pavimentos para aeronaves leves LARGURAS DAS PISTAS DE DECOLAGEM E DE TÁXI, DE ACORDO COM AS CIRCULARES APROPRIADAS; DECLIVIDADES TRANSVERSAIS, DE ACORDO COM AS CIRCULARES APROPRIADAS; REVESTIMENTO, BASE, PCC, etc., COMO NECESSÁRIO; MÍNIMO 12" (30 cm) [ Para PCC é permissível até 30" (76 cm)]. 1 2 3 4
  • 154.
    Aula 01 -Aeroportos Apostila de Aeroportos 154 FIGURA 1.08
  • 155.
    Aula 01 -Aeroportos Apostila de Aeroportos 155 1.10. Dimensionamento dos Pavimentos Rígidos • Composição do pavimento: PLACA DE CONC. CIMENTO SUB BASE SUB LEITO • Sub-base: Fornecer um suporte uniforme e estável para as placas, se exigida, deve ter espessura ≥ 10 cm, e > 10 cm somente com finalidade de aumentar K (módulo de reação do subleito). • Determinação do módulo de reação da fundação (K): K do material diretamente abaixo da placa. Calcular K para subleito e depois corrigir para sub-base. Fig. 2.5, fig. 3.13. o Maneiras de determinação: a) Pelo carregamento do solo por uma placa padrão b) Comparação com outro solo com as mesmas características c) Carregando-se diretamente um pavimento que foi construído em base semelhante ao estudo d) Pelo ISC (CBR) K ISC
  • 156.
    Aula 01 -Aeroportos Apostila de Aeroportos 156 FIGURA 1.09
  • 157.
    Aula 01 -Aeroportos Apostila de Aeroportos 157 FIGURA 1.10
  • 158.
    Aula 01 -Aeroportos Apostila de Aeroportos 158 1.11. Dimensionamento dos Pavimentos Rígidos • Determinação da aeronave tipo ou de projeto • Carga • Decolagens equivalente para aeronave tipo • Dados para dimensionamento: a) Resistência à tração na flexão do concreto b) Coeficiente de recalque do subleito (K) c) Peso total da aeronave d) Decolagens anuais da aeronave tipo • Correção da espessura para número de decolagens anuais superiores a 25.000 50000 4% 100000 8% 150000 10% 200000 12% DECOLAGENS ANUAIS ACRÉSCIMO DA ESPESSURA PARA 25000 DECOLAGENS • Áreas do pavimento: o Críticas (espessura = T) o Não críticas (espessura = 0,9T) Exemplos de aplicações 1. Dimensionar o pavimento rígido para um aeroporto, sabendo-se que a resistência à tração na flexão do concreto a ser utilizado é de 650psi, o subleito tem um coeficiente de recalque K = 300pci, e que a aeronave tipo tem peso total de 60000lb, com previsão para 6000 decolagens anuais, sendo o seu trem de pouso de roda simples. Solução: ϭtf = 650psi K = 300pci Pt = 60.000lb (roda simples)
  • 159.
    Aula 01 -Aeroportos Apostila de Aeroportos 159 Nd = 6.000 FIGURA 1.11 Entretanto no gráfico das curvas de projeto para pavimento rígido, roda simples, obtemos o valor da espessura da placa: h = 9,5”’ h ≅ 24cm Áreas críticas h1 = T h1 = 24cm Áreas não críticas h2 = 0,9T h2 ≅ 22cm Obs.: Acrescentar a diferença (2 cm) no subleito.
  • 160.
    Aula 01 -Aeroportos Apostila de Aeroportos 160 2. Dimensionar o pavimento rígido para um aeroporto, sabendo-se que a aeronave tipo tem trem de rodas duplas, seu peso de decolagem é de 180.000lb, e a previsão é de 15.000 decolagens anuais. O subleito tem um coeficiente de recalque igual a 100pci e a placa será colocada sobre uma sub-base estabilizada com 8” (20 cm) de espessura. O concreto será dosado para atingir a tração na flexão igual a 700psi. Solução: Pt = 180.000 lb (rodas duplas) Nd = 15.000 Ksub-leito = 100pci Csub-base = 8’’ (20 cm) ϭtf = 700psi a) Vamos inicialmente calcular o valor de melhoria introduzida com a colocação da sub-base, ou seja, o acréscimo de K (K’). No gráfico com e = 8’’ e Ksub-leito = 100pci, obtemos para K, K’ = 250pci FIGURA 1.12 – Efeito da sub-base no módulo de reação do subleito. PLACA DE CONCRETO SUB-BASE SUB-LEITO h=? 8"
  • 161.
    Aula 01 -Aeroportos Apostila de Aeroportos 161 Base do gráfico: uma camada estabilizada é duas vezes mais eficiente do que um agregado britado bem graduado. FIGURA 1.13 Entrando no gráfico com os valores: ϭtf = 700psi Pt = 180.000 lb Obtemos h = 16”” h = 40cm K = 250pci Nd = 15.000 Área crítica h1 = 40 cm Área não crítica h2 = 0,9T = 36,0 cm Obs.: Acrescentar diferença na sub-base. PLACA SUB-BASE 40 20 PLACA SUB-BASE 36 24
  • 162.
    Aula 01 -Aeroportos Apostila de Aeroportos 162 Para o projeto do pavimento rígido será necessário definir o tamanho das placas através da definição do espaçamento das juntas longitudinais e transversais, conforme tabela a seguir. 1.12. Tamanho de Juntas de Placas sem Sub-Base Estabilizada Parte I – sem Sub-base Estabilizada Espessura da Placa Espaçamento das Juntas (1) Polegadas Milímetros Pés Metros 6 152 12.5 3.8 6.5 - 9 165 - 229 15 4.6 > 9 > 229 20 6.1 1.13. Tamanho de Juntas de Placas com Sub-Base Estabilizada Parte I – com Sub-base Estabilizada Espessura da Placa Espaçamento das Juntas (1) Polegadas Milímetros Pés Metros 8 - 10 203 -254 12.5 3.8 10.5 - 13 267 - 330 15 4.6 13.5 - 16 343 - 406 17.5 (2) 5.3 (2) > 16 > 406 20 6.1 (1) Transversal e Longitudinal. (2) Para as geometrias típicas de Pistas P/D e Táxi a junta longitudinal correspondente é 18.75 pés (5.7m). As juntas poderão ser de construção, contração e isolamento. A seguir são apresentados os detalhes destes diversos tipos de juntas que compõem um pavimento rígido.
  • 163.
    Aula 01 -Aeroportos Apostila de Aeroportos 163 FIGURA 1.14 - Tipos De Juntas E Detalhes Em Pavimento Rígidos
  • 164.
    Exercício de Dimensionamentode Pavimento Flexível Aeronave de projeto Trem de pouso: duplo tandem Peso bruto da aeronave: 150.000 Nº de movimento anuais: 30.000 => NDA = 30.000/2 = 15.000 ISC ou CBR subleito: 5% ISC ou CBR sub-base: 20% Ábaco figura 3-4 pág. 37 e tabela 3 Apostila de Aeroportos Exercício de Dimensionamento de Pavimento Flexível Trem de pouso: duplo tandem Peso bruto da aeronave: 150.000 libras Nº de movimento anuais: 30.000 => NDA = 30.000/2 = 15.000 base: 20% 4 pág. 37 e tabela 3-4 pág. Aula 01 - Aeroportos 164
  • 165.
    Aula 02 -Aeroportos Apostila de Aeroportos 165 AULA 02 1. Drenagem em Aeroportos 1.1. As Áreas dos Aeroportos • Terrenos muito planos – pouca declividade; • Projeto adequado – perfil longitudinal e transversal. 1.2. Funções da Drenagem • Coletar e remover as águas de escoamento das pistas p/d, táxis, pátios e outras áreas; (permitir a operação das aeronaves) • Remover a água subterrânea abaixo do pavimento. (não causar danos à sua estrutura). 1.3. Estimativa da Água de Escoamento das Chuvas • O total de água que escoa e é captado pelo sistema de drenagem, depende de: o Extensão da área de contribuição; o Características da chuva de projeto; (intensidade, duração e recorrência) o Características da bacia de contribuição. (declividade e impermeabilidade da área). 1.4. Método Racional • Usado para calcular o escoamento da água de chuva; • Criado em 1905 por D. E. Lloyd-Davis – Inglaterra; • Adaptado pela FAA para drenagem de aeroportos; • Simples e fácil programar em computador. 1.5. Operação do Método • Calcula-se cada ponto de capitação isolado; • Inicia-se pelo ponto mais afastado; (rede de dutos do sistema de drenagem) • Pressupostos: o Chuva de projeto – intensidade uniforme (I); o Duração igual tempo de concentração (Tc); o Área de contribuição igual área acumulada.
  • 166.
    Aula 02 -Aeroportos Apostila de Aeroportos 166 FIGURA 2.01 - Esquema de Escoamento Da Água da Chuva 1.6. Fórmulas Utilizadas • Capacidade: Q = 1/360 x C I A Onde: Q – vazão (m³/s); C – coeficiente de escoamento (runoff); I – intensidade da chuva (mm/hora) A – área de contribuição (hectares).
  • 167.
    Aula 02 -Aeroportos Apostila de Aeroportos 167 Onde: I -> Tc sendo: Tc = ti + tf Tf = Ld/Vf e Vf = Q/A • Equação de Manning: Q = 1/ x A R2/3 S1/2 e R = A/P Onde: Q – vazão (m³/s) A – área molhada (m²) R – raio hidráulico (m) S – declividade do leito (%) P – perímetro da área molhada (m) η - coeficiente de rugosidade • Equação da continuidade: Q = A V Onde: Q – vazão (m³/s) A – área molhada (m²) V – velocidade de escoamento (m/s)
  • 168.
    Aula 02 -Aeroportos Apostila de Aeroportos 168 FIGURA 2.02 - Surface Flow Time Curves
  • 169.
    Aula 02 -Aeroportos Apostila de Aeroportos 169 FIGURA 2.03 – Rainfall Intensity Curves
  • 170.
    Aula 02 -Aeroportos Apostila de Aeroportos 170 1.7. Exercícios de Drenagem – Método Racional • Exercício 01: Dada uma área de contribuição A = 10 ha, o coeficiente de escoamento ou Runoff para a área mencionada C = 0,9 e a intensidade de precipitação de chuva de projeto igual a 180 mm/h, calcule a vazão de escoamento Q. CIA , onde C – coeficiente de Runoff; I – mm/h A – ha (hectares) x (0,9) x 180 x 10 = 4,5 m³/s • Exercício 02: Uma área de contribuição possui área pavimentada igual a 10 há e gramada de 2 há. Calcule a área efetiva de contribuição. Apav = 10 ha e Agram = 2 há Assumindo: Cpav = 0,9 e Cgram = 0,3 Onde: Apav = área pavimentada Agram = área gramada Cpav = contribuição da área pavimentada Cgram = contribuição da área gramada A área de Contribuição Efetiva será igual ∑ CA = Cpav x Apav + Cgram x Agram 0,9 X (10) + 0,3 X (2) = 9,6 há Área total de contribuição – At At = 10 + 2 = 12 ha Coeficiente de Escoamento Efetivo – Cef = ∑ CA = 9,6 = 0,8 At 12
  • 171.
    Aula 02 -Aeroportos Apostila de Aeroportos 171 • Exercício 03: Dado o tempo de escoamento para a água entrar no Bueiro (B) igual a 15 min (ti) e um tempo de escoamento na tubulação até o ponto (A) igual a 2 min (tf). Encontre o tempo de concentração para o dimensionamento da tubulação na seção A. Tc = 15 + 2 = 17 min • Exercício 04: Dado que a declividade de uma área gramada é igual a 2,5% e a área pavimentada á igual a 0,75%. Sendo as distâncias máximas no escoamento para as respectivas áreas são iguais a 160m e 90 m. Calcule o tempo de escoamento até a entrada no bueiro B. Do gráfico 1, obtêm-se: ti gramado = 27 min ti pavimentado = 7,5 min tiB = 27 + 7,5 = 34,5 min • Exercício 05: Uma área de contribuição possui as seguintes características apresentada abaixo: (a) Ap = 500 x 200 = 10 ha D = 0,75% e C = 0,9 (b) Ag1 = 500 x 20 = 1 ha D = 2,5% e C = 0,3 (c) Ag2 = 500 x 80 = 4 ha D = 1,5% e C = 0,3 Tc = ti + tf
  • 172.
    Aula 02 -Aeroportos Apostila de Aeroportos 172 Do ábaco da figura 2, têm-se: (a) tip = 11 min (b) tig1 = 9 min Tc = 11 + 9 = 20 min (c) tig2 = 21 min Apesar da distância (a+b) ser maior do que (c), o tempo de escoamento em (c) até a valeta de drenagem se tornou maior, isto é, igual a 21 minutos. Portanto este valor deverá ser considerado como o tempo de concentração da área de contribuição. Tc=21min. • Exercício 06 (continuação do Exercício 05): Dimensionar a seção da valeta de drenagem superficial e sua declividade para um Tempo de Recorrência – TR = 50 anos. Tc = ti + tf , onde ti = 21 min e Tf = L L – Distância e m V V – Velocidade de escoamento em m/s Se a valeta de drenagem não for revestida de concreto, a sua velocidade máxima poderá ser igual a 1,5 m/s. Adotando-se V = 1,5 m/s, então tf = 500/1,5 = 333 segundos, ou seja, igual a 5,5 min. ou 5 min. O tempo de concentração será: Tc = 21 + 5 = 26 min Para se obter a intensidade de precipitação de chuva (I), entra-se no ábaco da figura 2 e encontra-se o valor de I igual a 185 mm/h para um Tempo de Recorrência de 50 anos. A vazão na seção do ponto A será igual a: Q = ___1___ I x ∑ CA 360 Q = ___1___ 185 X (10,5) = 5,4 m³/s 360 Pela equação da continuidade, Q = V x A, logo A = Q / V, isto é, A = 5,4 / 1,5 = 3,6 m² A = B x D, se for adotado B = 2,5m, então D = 1,44m Da equação de Manning, V = __1__ R2/3 S1/2 η
  • 173.
    Aula 02 -Aeroportos Apostila de Aeroportos 173 onde: V – Velocidade em m/s R – Raio Hidráulico – m S – Declividade – m/m Sabe-se que R = Am/Pm, em que Am = Área Molhada e P = Perímetro da Área molhada. Calculando-se R = 3,6 / (2x1,44 + 2,5) = 3,6 / 5,38 = 0,67 m. Entrando-se com os respectivos valores na fórmula de Manning, obtem-se o valor da declividade – S. Adotar o valor de η igual a 0,027. 1,5 = __1__ (0,67)2/3 S1/2 0,027 S1/2 = 0,052894 Logo, S = 0,0027978 ou seja 0,28% = 0,3% (Adotar 0,5% que o valor mínimo aconselhável ) • Exercício 07: Considere a seguinte bacia de contribuição, composta das áreas 1, 2 e 3 e seus respectivos tempos de escoamento (tij) e fluxo (tfj). Definir o tempo de concentração para o ponto A. Tc1 = ti1 + tf1 = 10 + 3 = 13 min Tc2 = ti2 + tf2 = 8 + 4 = 12 min Tc3 = ti3 + tf3 = 14 + 0 = 14 min (máximo Tc), logo o tempo de concentração da bacia será: Tc = 14 min A intensidade de precipitação de chuva pode ser obtida do ábaco da figura 2, isto é, para um Tempo de Recorrência - TR de 10 anos, o valor de I = 175 mm/h. A
  • 174.
    Aula 02 -Aeroportos Apostila de Aeroportos 174 FIGURA 2.04 - Exemplo De Projeto de Drenagem
  • 175.
    Aula 02 -Aeroportos Apostila de Aeroportos 175 FIGURA 2.05 - Determination of Tc
  • 176.
    __________ _ _______________________________________________Aula 02 – Aeroportos_ Apostila de Aeroportos 176 Planilha de Cálculo de Rede de Drenagem em Aeroportos – Método Racional TEMPO DE RECORRÊNCIA - TR = 5 anos VELOCIDADE MÉDIA NOS DRENOS = 0,75 m/s VM Adot = 1,00 m/s η = 0,015 Bueiro Trecho Dreno Compr. Dreno (m) TC Bueiro (min) TE Dreno (min) TC Bacia (min) I (mm/hr) Área de Contribuição CA (ha) Σ CA (ha) Q (m³/s) * Seção Dreno D (cm) Decliv. % Área Molhada (m²) Velocid. (m/s) Paviment. Gramada 12 12-11 155 52 3,4 52 88 1,737 1,203 2,94 2,94 0,72 110 0,32 0,96 11 11-10 259 53 5,8 55,4 84 1,998 1,122 3,12 6,06 1,41 155 0,25 1,89 10 10-9 167,2 39 3,7 61,2 78 0,369 1,329 1,698 7,758 1,68 169 0,23 2,24 13 13-9 221,9 62 4,9 62 76 0,72 2,370 3,09 10,848 2,29 197 0,21 3,05 9 9-10 348,1 42 7,7 66,9 74 0,531 1,770 2,301 13,149 2,7 214 0,20 3,60 *Bueiro circular.
  • 177.
    __________ _ Aula03 – Aeroportos_ Apostila de Aeroportos 177 AULA 03 1. Sinalização Horizontal de Pista 1.1. Tipos de Sinalização 1.2. Pista de Pouso e Decolagem • Pista de pouso e decolagem: pintura cor branca. Em pavimento de cor clara a pintura terá uma moldura na cor preta. • Pista de táxi: pintura cor amarela. • Posições de pátio de aeronaves: pintura cor amarela. Tipo de Operação da Pista Elementos da Sinalização VFR Eixo de pista Designação de pista Faixas de cabeceira Ponto de espera IFR - Não Precisão Eixo de pista Designação de pista Faixas de cabeceira Ponto de visada Ponto de espera IFR - Precisão Eixo de pista Designação de pista Faixas de cabeceira Ponto de visada Marca de zona de contato Faixa lateral Ponto de espera
  • 178.
    __________ _ Aula03 – Aeroportos_ Apostila de Aeroportos 178 FIGURA 3.01 - Influência das Condições Meteorológicas
  • 179.
    __________ _ Aula03 – Aeroportos_ Apostila de Aeroportos 179 Av=166°25’42” Am=182°25’42” FIGURA 3.02 - Exemplo de Identificação de Pista DM N mag. N verd. Av = 166°25'42'' DM = 16°W Am = 182°25'42'' 30.00 12.00 9.00 6.00 6.00 9.00 12.00 F I Az
  • 180.
    __________ _ Aula03 – Aeroportos_ Apostila de Aeroportos 180 9.0 1.5 0.3 0.8 2.4 0.5 2.64.0 1.51.5 3.0 3.65.4 1.4 1.5 3.0 1.11.1 1.5 2.72.93.4 3.9 1.5 1.5 2.71.54.8 3.0 1.5 0.8 3.8 5.6 9.0 0.8 1.5 3.0 3.85.2 3.0 1.51.5 1.51.5 3.0 2.14.82.1 NOTA: UNIDADESEMMETROS FIGURA 3.03 - Formas e Proporções dos Números e Letras de Identificação de Pista de Pouso 2.02.05.5 3.0 1.51.5 0.8 9.5 9.0 3.5 0.3 5.13.9 1.51.11.5 3.0 4.01.52.02.0 3.0 0.8 1.5 6.0 9.5 3.02.2 0.8 9.0 1.5
  • 181.
    __________ _ Aula03 – Aeroportos_ Apostila de Aeroportos 181 FAIXA DE CABECEIRA: Largura da pista Número de faixas 18 m 4 23 m 6 30 m 8 45 m 12 60 m 16 A) Eixo: Toda pista pavimentada deve ter sinalização de eixo, que é uma linha de traços uniformemente espaçados, sobre o eixo longitudinal da pista, localizados entre as duas sinalizações designadoras de pista, como figuras 3.04 e 3.05. O comprimento de cada traço mais o intervalo deve estar compreendido entre 50m e 75m. O comprimento de cada traço deve ser de no mínimo 30m ou pelo menos igual ao comprimento do intervalo, escolhendo-se o que for maior. Sua largura depende do tipo de operação do aeródromo: • 90cm em pista para aproximação de precisão CAT II ou CAT III; • 45cm em pistas para aproximação de precisão CAT I ou em pistas para aproximações que não sejam de precisão, cujo código de pista seja 3 ou 4; • 30cm nos demais casos.
  • 182.
    __________ _ Aula03 – Aeroportos_ Apostila de Aeroportos 182 6.00 30.00 12.00 9.00 12.00 30.00 60.00 2.80 . 4.00 30.00 12.00 9.00 12.00 0.90 0.50 1.70 6.00 31.00 3.400.90 69.00 FIGURA 3.04 6.00 30.00 12.00 9.00 6.00 9.00 12.00 1.20 0.9018.703.4018.700.90 R30.00 0.90 0.90 0.90 0.90 06FAIXASDE1.70EOSINTERVALOSDE1.70
  • 183.
    __________ _ Aula03 – Aeroportos_ Apostila de Aeroportos 183 FIGURA 3.05 6,00 30,0020,00 h=10,00 20,0020,00 10,00 20,00 1,80 30,0020,00 1,80 h/3 10,00 h/12 h/3 A - CABECEIRA DESLOCADA TEMPORARIAMENTE B- CABECEIRA DESLOCADA TEMPORARIA OU PERMANENTEMENTE
  • 184.
    __________ _ Aula03 – Aeroportos_ Apostila de Aeroportos 184 B) Ponto de Visada: é utilizada em ambos os extremos das pistas pavimentadas de vôo por instrumento, cujo código de pista seja 2, 3 ou 4. Consiste de duas faixas retangulares, uma de cada lado do eixo longitudinal da pista e, a distância entre seus lados internos e suas dimensões é variável, conforme tabela e figura 3.05. Havendo sinalização de zona de contato, a separação lateral entre estes dois tipos de sinalização deve ser a mesma. D < 800 800 ≤ D 1.200 1.200 ≤ D < 2.400 2.400 ≤ D Distância da cabeceira ao início da faixa 150m 250m 300m 400m Comprimento da faixa 30-45m 30-45m 45-60m 45-60m Largura da faixa 4m 6m 6-10m 6-10m Espaço lateral entre os lados internos das faixas 6m 9m 18-22,5m 18-22,5m PONTO DE VISADA LOCALIZAÇÃO E DIMENSÕES Localização e dimensões Distância disponível para aterrissagem (D) em metros
  • 185.
    __________ _ Aula03 – Aeroportos_ Apostila de Aeroportos 185 FIGURA 3.06
  • 186.
    __________ _ Aula03 – Aeroportos_ Apostila de Aeroportos 186 FIGURA 3.07
  • 187.
    __________ _ Aula03 – Aeroportos_ Apostila de Aeroportos 187 FIGURA 3.08 C) Zona de Contato: É utilizada em ambos os extremos das pistas para aproximação de precisão cujo código de pista seja 2, 3 ou 4. Consiste de pares de faixas retangulares, a cada lado do eixo longitudinal, existindo uma configuração básica e outra com codificação de distância, conforme figura 3.0.6. Na configuração básica o comprimento mínimo é de 22,5m e a largura mínima de 1,8m, com separação entre faixas adjacentes de 1,5m. O espaçamento lateral entre os lados internos dos retângulos deve ser o mesmo utilizado para a sinalização de ponto de visada. Os pares de faixas serão dispostos com intervalos longitudinais de 150m a partir da cabeceira, exceto quando estes pares coincidirem com a sinalização de ponto de visada ou estiverem situados a menos de 50m desta. A quantidade de pares utilizada será função do comprimento real da pista de pouso, conforme tabela. 150.00 45.00 6.00 0.90 6.00 R44.60 R23.00 0.45 9.009.00 6.00 0.90 60.00 AMARELA AMARELA BRANCA
  • 188.
    __________ _ Aula03 – Aeroportos_ Apostila de Aeroportos 188 D) Borda: É utilizada em todas as pistas de aproximação de precisão e nas pavimentadas, onde não houver contraste entre as bordas da pista e o terreno ou pavimento adjacente. Consiste de duas faixas, disposatas uma de cada lado do eixo de pista, ao longo de suas bordas, exceto no caso das pistas com mais de 60m de largura quando as bordas externas das faixas devem coincidir com a distância de 30m em ralação ao eixo da pista. A largura das faixas será de 0,90m, no mínimo, para as pistas com 30m de largura ou mais e, de 0,45m para as pistas com largura inferior a 30m conforme figuras 3.06 e 3.07. Na intersecção de duas ou mais pistas, deve ser conservada a sinalização horizontal da pista mais importante, interrompendo-se das demais. A sinalização de borda da pista de pouso mais importante pode ser mantida ou interrompida. A ordem de importância das pistas para efieto de conservação de sinalização horizontal é a seguinte: 1) Pista de aproximação de precisão (CAT I, CAT II ou CAT III); 2) Pista de aproximação que não seja de precisão; 3) Pista de pouso visual; 4) Pista de rolamento. 1.3. Tipos de Sinalização de Pista de Rolamento ou Táxi A) Eixo: Deve ser utilizada em toda pista de rolamento pavimentada. Consiste de um traço contínuo com 0,15m de largura, no mínimo, o qual só é interrompido ao encontrar a sinalização de ponto de espera. Nas curvas conserva, em relação à borda externa, a mesma distância que tinha parte retilínea, em relação às bordas. Nas interseções com as pistas de pouso, o eixo deverá formar uma curva para unir- se com o eixo da pista, prolongando-se paralelamente, por 60m (se o código de pista for 3 ou 4) ou por 30m (se o código de pista for 1 ou 2), além do ponto de tangência, mantendo uma separação, entre os centros das faixas, de 0,90m, conforme figura 3.07 e 3.08. Comprimento real da pista Pares de faixas menos de 900m 1 900 a 1200m (exclusive) 2 1200 a 1500m (exclusive) 3 1500 a 2400m (exclusive) 4 2400m ou mais 6 SINALIZAÇÃO DE ZONA DE CONTATO
  • 189.
    __________ _ Aula03 – Aeroportos_ Apostila de Aeroportos 189 B) Borda: Deve ser utilizada nas pistas de rolamento pavimentadas, quando seu acostamento apresentar o mesmo aspecto e não possuir, no entanto, a mesma capacidade de suporte da pista de rolamento. Consiste de duas faixas duplas, dispostas uma de cada lado do eixo de pista, ao longo de suas bordas. A faixa dupla é composta por dois traços contínuos paralelos, cada uma com 0,15m de largura, com 0,15m de distância entre suas bordas internas. O limite lateral externo das faixas deve coincidir com a borda da pista de rolamento, como indica a figura 3.04 e 3.07. Com a finalidade de evitar confusão com o eixo de pista de rolamento, são utilizadas faixas transversais, no início e no final das curvas e nos pontos intermediários dos trechos retos. Estas faixas devem ter 0,90m de largura e seu comprimento deve ser 7,5m ou a largura do acostamento menos 1,5m, utilizando-se a que for menor, e os intervalos, em cada ponto de tangência, não deve exceder 15m e em pequenos trechos retos, tais intervalos não devem exceder 30m. C) Ponto de Espera: É utilizada sempre que houver a intersecção de uma pista de rolamento pavimentada com uma pista de pouso. Sua distância em relação ao eixo da pista de pouso varia de acordo com a classificação do aeródromo, conforme indicado na tabela seguinte e figura 3.08. 1 2 3 4 30m 40m 75m 75m 40m 40m 75m 75m 30m 40m 75m 75mDecolagem 60m - - 90m 60m 90m Aproximação visual Aproximação de não precisão DISTÂNCIA MÍNIMAS ENTRE O EIXO DA PISTA DE POUSO E UM PONTO DE ESPERA Aproximação de precisão Categoria I Aproximação de precisão Categoria I e II 90m 90m Tipo de aproximação Código de Pista
  • 190.
    __________ _ Aula03 – Aeroportos_ Apostila de Aeroportos 190 FIGURA 3.09 - Ponto de Espera
  • 191.
    __________ _ Aula03 – Aeroportos_ Apostila de Aeroportos 191 FIGURA 3.10 - Sinalização Luminosa – Detalhes
  • 192.
    __________ _ Aula03 – Aeroportos_ Apostila de Aeroportos 192 1.4. Exercício – Sinalização Horizontal de Pista P/D Elaborar o cálculo da pintura de eixo de pista correspondente ao projeto de sinalização horizontal de um aeroporto operação Cat.I, e cuja pista de pouso e decolagem possui 1.800 metros de comprimento e 30 metros de largura. 1) Definição da largura da faixa de pista = 90cm (Cat.II e Cat.III) = 45cm (Cat.I e N- Precisão código 3 e 4) = 30cm (demais casos) 2) Cálculo do comprimento das faixas de eixo de pista. PE – espaço para pintura das faixas de eixo de pista l – comprimento da faixa e – espaço entre faixas PE = C – 2 x 69, onde PE = n (l+e) + l, ou seja, PE – l = n (l+e) Restrições: l ≥ e ; 50m ≤ (l+e) ≤ 75m; l ≥ 30m C = 1800m – código 3 , operação instrumento Cat. I, logo a largura será = 45cm. PE = 1800 – 168 = 1662m 1ª hipótese: l = 30m, e = 20m, onde o conjunto (l+e) = 50m (1622 – 30) = n (30+20) = 32,64 como n não é inteiro, tomo a parte fracionária e multiplico pelo conjunto (l + e), ou seja, 0,64 x 50 = 32 m de diferença (faltando). Neste caso, em que l > e, posso acrescentar esta diferença nos espaços. Assim, acrescento 32m/32= 1m e o novo espaço será = 21m. Projeto final: l = 30m e = 21m n = 32 conjuntos (l+e), além da faixa no final 69.00 12.00 9.00 12.00 30.00 6.00 lel
  • 193.
    __________ _ Aula03 – Aeroportos_ Apostila de Aeroportos 193 30.00m LP/2 LP a lb 2l d e 6.00m pintura das faixas = (32+1) x 30 = 990m x largura da faixa. Verificação: PE = n (l + e) + l, isto é, PE = 32 (30+21) + 30 = 1662m 2ª hipótese: l = 37m, e = 37m, onde o conjunto (l+e) = 74m (1662 – 37) = n (37+37) = 21,95945 como n não é inteiro, tomo a parte fracionária e multiplico pelo conjunto (l + e), ou seja, 0,95945 x 74 = 71m de diferença (faltando). Neste caso, em que l = e estando o conjunto (l + e) próximo do valor limite de 75m e assim a distribuição da diferença nos espaços, ou seja, 71m/21= 3,38m ultrapassará este limite, Como a parte fracionária é próxima da unidade, a solução será arredondar o n para 22 conjuntos e a diferença (74 – 71 = 3m) reduzir nos espaços, considerando-se um número de conjuntos pares para o equilíbrio do projeto de forma simétrica (duas cabeceiras). Assim, será distribuído 0,5m em seis conjuntos com a redução dos espaços. Projeto final: l = 37m e = 37m, sendo 6 conjuntos com e = 36,5m n = 22 conjuntos (l+e), além da faixa no final pintura das faixas = (22+1) x 37 = 851m x largura da faixa. Verificação: PE = n (l + e) + l, isto é, PE = 16 (37+37) + 6 (37+36,5) + 37 = 1662m Observação: a 2ª hipótese resultará em uma menor área de pintura. Elaborar o projeto das faixas de cabeceira de uma pista P/D conforme dados a seguir: Largura da pista Número de faixas 23m 6 30m 8 45m 12 Nf/2 x (a+e) + d = LP/2, d ≤ 3,00m a = e, a= 1,80m a 1,60m (centro = 2e) LP < 30 lb = 0,45m e LP ≥ 30 lb = 0,90m
  • 194.
    __________ _ Aula03 – Aeroportos_ Apostila de Aeroportos 194 1) Largura da pista = 30metros e largura da pintura de borda = 0,90metros. 8/2 x (1,8+1,8) + d = 30/2, assim d = 0,60m, onde lb= 0,90 > d=0,60 reduzir espessura da faixa e espaços de 1,80m para 1,70. 8/2 x (1,7+1,7) + d = 30/2, assim d = 1,40m, onde lb= 0,90 < d=1,40 (Ok, isto resultará em 0,50m entre a faixa e a pintura de borda). 2) Largura da pista = 45metros e largura da pintura de borda = 0,90metros. 12/2 x (1,8+1,8) + d = 45/2, assim d = 0,90m, onde lb= 0,90 = d reduzir espessura da faixa e espaços de 1,80m para 1,70. 12/2 x (1,7+1,7) + d = 45/2, assim d = 2,10m, onde lb= 0,90 < d=2,10 (Ok, isto resultará em 1,20m entre a faixa e a pintura de borda). 3) Largura da pista = 23metros e largura da pintura de borda = 0,45metros. 6/2 x (1,8+1,8) + d = 23/2, assim d = 0,70m, onde lb= 0,45 < d=0,70 (Ok, isto resultará em 0,25m entre a faixa e a pintura de borda).
  • 195.
    __________ _ Aula04 – Aeroportos_ Apostila de Aeroportos 195 AULA 04 1. Acessos Terrestres e Estacionamentos 1.1. Parâmetros para o Dimensionamento dos Estacionamentos de Automóveis em Aeroportos Brasileiros Lenise Grando Goldner – PPGEC / UFSC Nilton Goldner – AEROPLANOS Ltda David Esteche Pedrozo- PPGEC/UFSC / UFSC Este trabalho objetiva analisar os estacionamentos de automóveis nos aeroportos brasileiros. Para tal realizou-se uma ampla coleta de dados nos aeroportos Hercílio Luz em Florianópolis e Salgado Filho em Porto Alegre. Pesquisou-se o uso dos diferentes tipos de estacionamentos disponíveis nos aeroportos, o perfil do usuário do estacionamento, o tempo de permanência na vaga e as taxas de utilização dos mesmos. Para uma amostra global de 26 aeroportos administrados pela Infraero propõe-se um modelo de regressão linear que fornece o número de automóveis que utilizam o estacionamento por ano, mês e dia de maior movimento em função do número correspondente de passageiros embarcando e desembarcando no aeroporto. Todas estas informações propiciam ao planejador de transportes o dimensionamento adequado do número de vagas de estacionamento para aeroportos brasileiros, em expansão ou em novos empreendimentos. Abstract This paper aims to investigate the Brazilian airports parking lots. To reach this target were collected raw data from airports Hercílio Luz and Salgado Filho, located in the cities of Florianópolis and Porto Alegre, respectively. It was researched the use of different kinds of available parking places in these airports, parking user’s profile, duration time on parking spaces and the rates of utilization of them. For one sample composed of 26 airports administered by Infraero, it was proposed one linear regression model that provides the number of vehicles which use parking spaces per year, peak month or peak day as function of the number of corresponding passengers embarking plus disembarking in the airport. These entire information permits transport planners the adequate dimensioning of the number of parking spaces for the Brazilian airports parking lots, in the expansion or construction of new airport.
  • 196.
    __________ _ Aula04 – Aeroportos_ Apostila de Aeroportos 196 1.2. Introdução Os aeroportos destacam-se como um importante Pólo Gerador de Tráfego existente em áreas urbanas, que produzem e atraem um grande número de viagens terrestres, causando problemas na fluidez e segurança do tráfego dos acessos e na área do entorno, bem como a necessidade de um número significativo de vagas de estacionamento para automóveis. Os aeroportos são, de maneira geral, sistemas complexos, dentre outras razões pela diversidade de seus usuários (passageiros, funcionários de companhias aéreas e da administração do aeroporto, visitantes, acompanhantes, etc.), pela inter-relação entre eles e pelos diferentes modos de transportes utilizados pelos mesmos. Segundo afirmação de Keefer (1966) e Leher & Freeman (1998), que estudaram os acessos terrestres e os estacionamentos de aeroportos, torna-se difícil generalizar os modelos e parâmetros obtidos nos estudos, face à já citada complexidade e diversidade entre os aeroportos e a realidade das cidades no qual estão inseridos. Ashford e Wright (1984) consideram que uma das maiores dificuldades encontradas pelo planejador de transportes é determinar a localização e o número de vagas de estacionamento de veículos de um aeroporto. No Brasil, Muller et al (1988) citam alguns índices para o dimensionamento dos estacionamentos: 1,5 a 2,0 vagas por passageiro na hora de pico;1,0 vaga para cada 5 passageiros na hora de pico para o estacionamento de funcionários e 0,4 a 0,8 vagas por 1000 passageiros anuais para o aeroporto como um todo. Nos Estados Unidos, a FAA (Federal Aviation Administration) recomenda o oferecimento de 0,5 vagas por 1000 passageiros anuais. Em relação ao tráfego das vias de acesso e solução para os congestionamentos existentes Schoenfeld (1979) propôs para o aeroporto Internacional de Los Angeles duas soluções: o fornecimento de estacionamento periférico à área do aeroporto e o estímulo à mudança do uso do automóvel para um sistema de vans, para o transporte deste estacionamento até o aeroporto. Outros estudos, como do ITE (comitê 6A19,1980), de Mohr e Gosling (1997), de Foote et al (1997), de Shapiro (1998), e de Lehre (1998), abordaram os problemas de circulação pelos acessos terrestres aos aeroportos, e maneiras de incrementar o transporte coletivo (ônibus, vans, trens etc) como alternativa de locomoção até os aeroportos, procurando minimizar os congestionamentos e diminuir a necessidade de vagas de estacionamento para veículos nos aeroportos.
  • 197.
    __________ _ Aula04 – Aeroportos_ Apostila de Aeroportos 197 No Brasil, durante o período de 2000 a 2004 realizou-se uma ampla pesquisa sobre as viagens terrestres aos aeroportos, através do estudo de caso dos Aeroportos Hercílio Luz em Florianópolis e Salgado Filho em Porto Alegre. Foram levantados dados sobre a demanda de viagens aéreas e características de cada um destes aeroportos administrados pela INFRAERO, realizadas entrevistas com os seus usuários para obtenção do perfil deles e as características das viagens terrestres; além do levantamento do número de automóveis que utilizaram os estacionamentos, bem como o número de vagas oferecidas (Goldner, 2002). Enviou-se, também, um questionário ao superintendente dos demais aeroportos administrados pela INFRAERO no país, para coleta de dados sobre seus estacionamentos. Como resposta, obteve-se informações de 24 aeroportos, que somados aos de Florianópolis e Porto Alegre constituíram uma amostra de 26 aeroportos estudados. Estudou-se ainda a probabilidade de escolha entre os tipos de estacionamentos oferecidos em função da tarifa adotada, através da calibração do Modelo Logit e o uso da técnica de preferência declarada (SP), além do estudo de modelos de escolha dos meios de transportes terrestres, em função das variáveis tempo de viagem e custo da viagem, com o uso do modelo Logit Multinomial (Goldner, 2004). Os resultados destes dois últimos estudos citados não serão objetos de apresentação neste artigo. O objetivo deste trabalho é, portanto, condensar as informações sobre a demanda dos estacionamentos de automóveis dos aeroportos brasileiros estudados através da amostra mencionada, bem como sugerir taxas de utilização e modelos de previsão deste volume de automóveis como subsídios para o planejamento adequado das vagas de estacionamento para aeroportos do país. Para os aeroportos Hercílio Luz e Salgado Filho apresentam-se as distribuições das viagens terrestres por meio de transporte, o local de estacionamento utilizado pelos usuários e as taxas de utilização dos estacionamentos para o ano, para o mês de maior movimento, para o dia de maior movimento e para a hora de pico; relacionando o número de automóveis com a demanda de passageiros embarcando e desembarcando para os períodos correspondentes, bem como a distribuição do tempo de permanência dos automóveis nas vagas. Numa segunda etapa, agregou-se a estas informações os dados dos demais aeroportos da amostra apresentando-se um modelo de regressão linear que relaciona o número de automóveis no estacionamento (anual, mensal e diário) com o número de passageiros embarcando e desembarcando no período no aeroporto.
  • 198.
    __________ _ Aula04 – Aeroportos_ Apostila de Aeroportos 198 1.3. Composição da Amostra do Estudo Os aeroportos pesquisados em detalhe, através de questionário para a administração, entrevistas “in loco” com os usuários e levantamentos de dados sobre a movimentação de veículos nos estacionamentos foram os aeroportos Salgado Filho e Hercílio Luz, ambos localizados em capitais no sul do Brasil. O aeroporto Hercílio Luz em Florianópolis (Fpolis), no estado de Santa Catarina, é administrado pela INFRAERO e possui um importante papel no cenário brasileiro e do Mercosul (Mercado Comum entre Argentina, Brasil, Paraguai e Uruguai), principalmente pela atração turística que a cidade exerce sobre o público brasileiro e argentino. No ano de 1999 o citado aeroporto movimentou um total de 891.354 passageiros, com 21% do tipo internacional, 60% do tipo doméstico e 19% do tipo regional. O aeroporto possui um único estacionamento, descoberto, com um total de 450 vagas. Em 2004, o número de passageiros embarcando e desembarcando foi de 1.382.577, sendo 94 % em vôos domésticos. O aeroporto Salgado Filho, localizado na cidade de Porto Alegre (POA), estado do Rio Grande do Sul, tem um papel importante no cenário nacional, sendo administrado também pela INFRAERO, e foi destacado em oitavo lugar na classificação dos aeroportos brasileiros, no que se refere ao tráfego doméstico, segundo dados analisados por Pereira Filho et al em 1999. No ano de 2004, ocupou o sétimo lugar no ranking nacional. No ano de 1999, o aeroporto Salgado Filho apresentou um movimento total de passageiros de 2.337.614, sendo que destes 8,20% são do tipo internacional, 70% doméstico e 21,80% regional. Em setembro de 2001, foi inaugurado o novo terminal de passageiros do aeroporto, com dois tipos de estacionamentos, um descoberto, com 770 vagas e um edifício garagem, com 1440 vagas. Em 2004 o número de passageiros embarcando e desembarcando neste aeroporto foi de 3.215.546, com 91,8 % em vôos domésticos. Os demais aeroportos da rede administrada pela INFRAERO, que são em número de 66, foram contatados via correio, para o preenchimento de um questionário padrão, sobre a movimentação de passageiros e de veículos nos estacionamentos. Desta forma, obteve- se resposta de 26 aeroportos (incluindo o Hercílio Luz e o Salgado Filho). A tabela 1, a seguir, apresenta a listagem dos aeroportos que compõem a amostra total estudada.
  • 199.
    __________ _ Aula04 – Aeroportos_ Apostila de Aeroportos 199 Tabela 1: Aeroportos que responderam ao questionário enviado Nº Aeroporto Nº 1 Aeroporto de Ilhéus (BA) 14 2 Aeroporto Intern. Tancredo Neves (MG) 15 3 Aeroporto Regional do Cariri (CE) 16 4 Aeroporto de Uberaba (MG) 17 5 Aeroporto Intern. Augusto Severo (RN) 18 6 Aeroporto de Belo Horizonte (MG) 19 7 Aeroporto Intern. de Brasília (DF) 20 8 Aeroporto Intern. de Boa Vista (RR) 21 9 Aeroporto Intern. Pres.Castro Pinto (PB) 22 10 Aeroporto Intern. do Rio de Janeiro (RJ) 23 11 Aeroporto Intern.de Cruzeiro do Sul (AC) 24 12 Aeroporto de Goiânia (GO) 25 13 Aeroporto de Montes Claros (MG) 26 Aeroporto de Vitória (ES) Aeroporto Intern. de Ponta Porã (MS) Aeroporto Bartolomeu Lysandro (RJ) Aeroporto Hercílio Luz (SC) Aeroporto Intern. Salgado Filho (RS) Aeroporto Intern. Guararapes (PE) Aeroporto Intern. de Congonhas (SP) Aeroporto Intern .de São Paulo (SP) Aeroporto de Imperatriz (MA) Aeroporto Aeroporto Intern. Pinto Martins (CE) Aeroporto de Petrolina (PE) Aeroporto de Macaé (RJ) Aeroporto Intern. de Corumbá (MS) 1.4. Escolha Modal e Demanda de Autos nos Estacionamentos dos Aeroportos Hercílio Luz e Salgado Filho Para as pesquisas mencionadas anteriormente, foram coletadas informações sobre o perfil do usuário do aeroporto (tipo de usuário, sexo, idade, escolaridade, tipo de vôo, propósito e freqüência da viagem aérea, profissão), as características das viagens terrestres (meio de transporte utilizado, tempo de viagem, origem/destino da viagem) e o uso de estacionamento por automóveis (local, tempo de permanência na vaga). Foram feitas 400 entrevistas com usuários em cada aeroporto, sendo que, no Aeroporto Salgado Filho, se realizou nos meses de agosto e setembro de 2000 (meses típicos), e no Hercílio Luz no mês de janeiro de 2001 (período de pico), devido à sazonalidade em função do turismo de verão, e em abril de 2001 (período normal), considerado um mês típico. Dentre as informações obtidas, a seguir, nos próximos parágrafos são apresentadas algumas das estatísticas que possuem relação direta com o estudo do estacionamento.
  • 200.
    __________ _ Aula04 – Aeroportos_ Apostila de Aeroportos 200 Da amostra total de usuários entrevistados por aeroporto, obtém-se o percentual por meio de transporte utilizado, como se observa na tabelas 2 e 3, para os movimentos de entrada e saída do aeroporto Hercílio Luz (HL) e nas tabelas 4 e 5 para o aeroporto Salgado Filho (SF). Tabela 2: Distribuição por meio de transporte das viagens chegando ao aeroporto HL Meio de transporte Origem Período de pico Período típico Soma % Soma % Carro Fpolis 71 46,41 79 49,07 Interior 24 15,69 12 7,45 Ônibus de linha Fpolis 10 6,54 14 8,7 Interior 6 3,92 3 1,86 Ônibus fretado Fpolis 3 1,96 1 0,62 Interior 4 2,61 0 0 Táxi Fpolis/Interior 22 14,38 39 24,22 Van Fpolis 4 2,61 4 2,48 Outro Fpolis/Interior 9 5,88 9 5,59 Total 153 100 161 100 Durante o período de pico, houve predominância das viagens por automóvel, representando 62,10% do total, seguido por táxi com 14,38%. No período típico, as viagens por automóvel representaram 56,52% do total, seguidas pelo táxi com 24,22%. Tabela 3: Distribuição por meio de transporte das viagens saindo do aeroporto HL Soma % Soma % Fpolis 15 46,88 12 35,29 Interior 3 9,38 5 14,71 Fpolis 3 9,38 1 2,94 Interior 1 3,13 0 0 Fpolis 1 3,13 0 0 Interior 0 0 0 0 Táxi Fpolis/Interior 4 12,5 10 29,41 Van Fpolis 0 0 3 8,82 Outro Fpolis/Interior 5 15,63 3 8,82 32 100 34 100 Período de pico Período típicoMeio de transporte Origem Carro Ônibus de linha Ônibus fretado Total
  • 201.
    __________ _ Aula04 – Aeroportos_ Apostila de Aeroportos 201 Em relação ao meio de transporte utilizado para sair do aeroporto, durante o período de pico, houve predominância das viagens por automóvel, representando 56,26% do total, seguido por táxi com 12,50%. Já no período típico, as viagens por automóvel representaram 50,00% do total, seguidas por táxi com 29,41%. Tabela4: Distribuição por meio de transporte das viagens chegando ao aeroporto SF Meio de transporte Origem Motorista Passageiro Soma % POA 71 64 135 46,23 Interior 11 17 28 9,59 POA 20 20 6,85 Interior 20 20 6,85 Táxi POA 75 75 25,68 Trem POA 10 10 3,42 POA 3 3 1,03 Interior 1 1 0,34 292 100 Van Total Carro Ônibus O meio de transporte predominante das pessoas que chegaram ao aeroporto foi o automóvel com 55,82% do total, seguido pelo táxi com 25,68%. Tabela 5: Distribuição por meio de transporte das viagens saindo do aeroporto SF Meio de transporte Origem Motorista Passageiro Soma % POA 46 54 100 64,94 Interior 4 12 16 10,39 POA 4 4 2,6 Interior 7 7 4,55 Táxi POA 22 22 14,29 Trem POA 3 3 1,95 POA 1 1 0,65 Interior 1 1 0,65 154 100Total Carro Ônibus Van O meio de transporte predominante das pessoas que saíram do aeroporto foi o automóvel com 75,32% do total, seguido pelo táxi com 14,29%. Observando-se o total das tabelas 4 e 5 percebe-se que a soma ultrapassa o valor de 400 pessoas. Isso se explica pelo fato de que em alguns casos se considerou as viagens chegando e saindo para uma mesma pessoa, na maioria das vezes os acompanhantes como usuários. Segmentando-se da amostra total os usuários que utilizaram o automóvel, e conseqüentemente algum tipo de estacionamento, obtêm-se a distribuição percentual
  • 202.
    __________ _ Aula04 – Aeroportos_ Apostila de Aeroportos 202 por local, o que pode ser observado nas tabelas 6 e 7, para o aeroporto Hercílio Luz e Salgado Filho, respectivamente. Tabela 6: Distribuição por local de estacionamento para quem chega ou sai do aeroporto de automóvel HL veículos % veículos % Estacionamento no Aeroporto 81 51,92 62 37,8 Estacionamento próximo ao aeroporto 11 7,05 13 7,93 Meio-fio de embarque e desembarque 63 40,38 88 53,66 Outro 1 0,64 1 0,61 Total 156 100 164 100 Local de estacionamento Período de pico Período típico Em relação ao local de estacionamento dos automóveis no aeroporto, para o fluxo de embarque ou desembarque de passageiros, no período de pico, houve predominância do uso do estacionamento do aeroporto representando 51,92% do total, seguido pelo meio-fio de embarque e desembarque com 40,38%. Já no período típico, a ordem se inverte 53,66% do total utilizaram o meio fio e 37,80% o estacionamento do aeroporto. Tabela 7: Distribuição por local de estacionamento para quem chega ou sai do aeroporto de automóvel SF Local de estacionamento veículos % No estacionamento do aeroporto 101 43,35 Fora do aeroporto 8 3,43 No meio - fio de embarque/desembarque 124 53,22 Total 233 100 Das pessoas que chegaram ou saíram de automóvel do aeroporto a maioria usou o meio-fio de embarque e desembarque, representando 53,22% do total, seguido pelos que usaram o estacionamento do aeroporto com 43,35%. Do total de usuários do estacionamento do aeroporto Hercílio Luz, para o estacionamento de curta duração (até 4 horas) 44,44 % são acompanhantes de passageiros, seguido por 32,22% de passageiros embarcando ou desembarcando. Para o estacionamento de longa duração 64,22 % dos usuários são passageiros embarcando ou desembarcando, seguidos por 22,38% de funcionários do aeroporto. A tripulação representou 5,24% do total.
  • 203.
    __________ _ Aula04 – Aeroportos_ Apostila de Aeroportos 203 Para o aeroporto Salgado Filho, no estacionamento de curta duração 55% dos usuários são passageiros embarcando ou desembarcando, seguido por 30,83% de acompanhantes de passageiros. Para o de longa duração 54,16 % são passageiros embarcando ou desembarcando, seguido por 19,17 % de funcionários de companhias aéreas, 12,50% de funcionários do próprio aeroporto e 10,83 % por tripulação. Do segmento formado pelos usuários do estacionamento do aeroporto, destaca-se a seguir a distribuição por tempo de permanência na vaga, segundo se observa nas tabelas 8 e 9. Tabela 8: Distribuição do tempo de aproximado de estacionamento no aeroporto HL veículos % veículos % Até 30 minutos 17 18,28 15 20 De 30 minutos a 1 hora 31 33,33 22 29,33 De 1 a 2 horas 20 21,51 21 28 De 2 a 4 horas 13 13,98 6 8 De 4 a 8 horas 7 7,53 2 2,67 De 8 a 12 horas 0 0 0 0 De 12 a 24 horas 0 0 0 0 Maior que 24 horas 5 5,38 9 12 Total 93 100 75 100 Período de pico Período típico Tempo estacionado O estacionamento de curta duração (até 4 horas), tanto no período típico quanto no período de pico representou aproximadamente 85% do total. Tabela 9: Distribuição do tempo aproximado de estacionamento no aeroporto SF Tempo estacionado veículos % Até 30 minutos 28 25,69 De 30 minutos a 1 hora 31 28,44 De 1 a 2 horas 25 22,94 De 2 a 4 horas 6 5,5 De 4 a 8 horas 1 0,92 De 8 a 12 horas 3 2,75 De 12 a 24 horas 2 1,83 Maior que 24 horas 13 11,93 O tempo aproximado de permanência no estacionamento do aeroporto se encontra na faixa de até 2 horas com 77,06%, onde se tem uma distribuição quase uniforme. Na
  • 204.
    __________ _ Aula04 – Aeroportos_ Apostila de Aeroportos 204 faixa de tempo maior que 24 horas tem-se um número um menos significativo, com 11,93% do total. Os cálculos dos tempos médios da amostra podem ser observados nas tabelas 10 e 11, a seguir. Para o cálculo destes tempos, levou-se em consideração o ponto médio do intervalo das tabelas 8 e 9, e como pontos extremos 0,25 horas (15 minutos) e 24 horas. Tabela 10: Tempo médio de permanência por período HL Valor médio do tempo Período de pico (horas) Período típico (horas) Média da amostra total 2,78 3,97 Média - Curta duração 1,19 1,09 Média - Longa duração 13,5 20,72 Tabela 11: Tempo médio de permanência por período SF Valor médio do tempo Período típico (horas) Média da amostra total 4,31 Média - Curta duração 0,95 Média - Longa duração 20,21 Nota-se que o comportamento dos usuários dos estacionamentos dos períodos típicos do aeroporto Hercílio Luz e Salgado Filho são bastante próximos, com valores médios de tempo de permanência na mesma ordem de grandeza, o que não acontece no período de pico do aeroporto Hercílio Luz. Com relação aos dados sobre o número de automóveis que utilizaram os estacionamentos, no ano de 1999 entrou no estacionamento do aeroporto Hercílio Luz 139.399 automóveis. O mês de maior movimento de automóveis foi janeiro, com 21.532 veículos, representando 15,45% do total anual. O dia de maior movimento do mês de janeiro, também, o dia de maior movimento do ano, foi 10/01/99, um domingo, com 958 automóveis, representando 4,45% do total mensal. A hora de maior movimento, do dia de maior movimento, ocorreu entre 13 e 14 horas do mencionado dia, com 122 automóveis, representando 12,73% do total diário. Este percentual é denominado genericamente como Percentual de Pico Horário (PPH). O número total de vagas oferecidas no estacionamento do aeroporto é 450. Para este mesmo ano, no aeroporto Salgado Filho, entraram 647.946 automóveis no estacionamento. O mês de maior movimento foi janeiro, com 62.465 automóveis (9,94% do anual). O dia de maior movimento de janeiro teve um movimento de 2.361 automóveis (3,78% do mensal) e só foi superado uma única vez no ano, no dia
  • 205.
    __________ _ Aula04 – Aeroportos_ Apostila de Aeroportos 205 primeiro de agosto, um domingo, que representou o retorno das férias de julho. O aeroporto oferecia na ocasião 750 vagas de estacionamento. 1.5. Taxas de Utilização dos Estacionamentos Com os dados de passageiros embarcando e desembarcando no ano de 1999, no mês de maior movimento e no dia de maior movimento, associados aos números de automóveis que entraram no estacionamento nestes períodos, respectivamente, pode- se elaborar as taxas de utilização destes estacionamentos, as quais são apresentadas na tabela 12, a seguir. Tabela 12: Cálculo das taxas de utilização dos estacionamentos HL e SF Taxas de utilização do estacionamento HL SF Automóveis no estacionamento por passageiros embarcando e desembarcando - ano de 1999 0,157 0,28 Automóveis no estacionamento por passageiros embarcando e desembarcando - janeiro de 1999 0,156 0,29 Automóveis no estacionamento por passageiros embarcando e desembarcando - dia de maior movimento de janeiro de 1999 0,133 0,36 Automóveis no estacionamento por passageiros embarcando e desembarcando - hora de maior movimento 0,177 dd* *dd = dado desconhecido A expectativa é que as taxas devam crescer no sentido de cima para baixo da tabela, respectivamente, pois à medida que se evolui do volume anual para a hora de pico a demanda tende a se concentrar, obtendo-se valores mais elevados. Isto, contudo, não aconteceu no aeroporto Hercílio Luz, cuja taxa para o dia de maior movimento é um pouco mais baixa. Já para o caso do aeroporto Salgado Filho, acontece o esperado com relação ao crescimento das taxas de utilização. Comparativamente, as taxas de utilização do aeroporto Salgado Filho são mais elevadas, o que representa uma maior concentração de automóveis no estacionamento por passageiro embarcado ou desembarcado. Infelizmente a taxa horária para este aeroporto não pôde ser calculada, por falta de dados. 1.6. Modelos de Regressão Linear para os Aeroportos A partir dos dados obtidos sobre o movimento de passageiros e o movimento de automóveis estacionados nos aeroportos de toda a amostra, com dados obtidos por questionário via correio para um total de 26 aeroportos (incluindo-se o Hercílio Luz e o
  • 206.
    __________ _ Aula04 – Aeroportos_ Apostila de Aeroportos 206 Salgado Filho), realizou-se a calibração de modelos de regressão linear simples, tendo como variável dependente (Y) o número de automóveis no estacionamento (anual, mensal, diário) e variável independente (X) o número de passageiros embarcando e desembarcando no aeroporto (anual, mensal, diário). Conforme descrito no trabalho apresentado por Goldner et al (2004) no XIII Congresso da ANPET, e representada pela expressão: Y = β1 + β2 X. Realizou-se uma série de tentativas de modelagem considerando-se os coeficientes da regressão β1 e β2. Porém, os modelos não se apresentaram estatisticamente confiáveis. Portanto, considerou-se β1=0, ou seja, a reta passando pela origem. Também, retirou- se da amostra o aeroporto 23 (Internacional de Congonhas), pois representa um ponto fora da curva, o quê prejudicava os valores do R2 das equações de regressão. Os resultados finais da calibração são apresentados na tabela 13, a seguir. Tabela 13: Modelos de regressão linear simples para os aeroportos da amostra. Tipo Equação R R2 N.º Teste t t min. (95%) Modelo Anual Y = 0,196 X 0,889 0,791 13 11,795 1,782 Modelo Mensal Y = 0,232 X 0,885 0,783 11 12,045 1,812 Modelo Diário Y = 0,255 X 0,751 0,565 8 6,227 1,895 Conforme se pode observar na tabela acima, os modelos obtidos para o ano 2000, o mês e o dia de maior movimento apresentaram coeficientes de correlação de bons a satisfatório, com a estatística t-student acima do valor mínimo, para o nível de confiança de 95%. Os coeficientes β2 cresceram conforme o esperado, de anual para diário. Apenas o modelo para a hora-de-pico não se apresentou estatisticamente confiável, não sendo recomendada a sua utilização e por isso não foi apresentado o modelo. 1.7. Conclusões A pesquisa sobre aeroportos foi desenvolvida entre 2000 e 2004 e segmentada em diversas partes. As questões ora apresentadas se referem ao estudo do estacionamento de automóveis, com dados obtidos de levantamentos e entrevistas realizadas no ano 2000, tendo como base o ano de 1999, cujas estatísticas de movimentação de passageiros estavam completas. Os dados referentes ao estacionamento de automóveis, as características dos usuários destes estacionamentos, o uso dos diferentes tipos de estacionamento do aeroporto e proximidades, o tempo de permanência na vaga e demais informações relevantes foram
  • 207.
    __________ _ Aula04 – Aeroportos_ Apostila de Aeroportos 207 obtidas em detalhes somente para os aeroportos Hercílio Luz e Salgado Filho, por motivo de proximidade e localização geográfica e, conseqüente, economia de recursos e mão de obra. Apenas os dados relacionados ao número de passageiros embarcando ou desembarcando e o número de automóveis nos estacionamentos foi generalizado para toda a amostra e obtido através de questionário via correio, totalizando 26 aeroportos estudados. Como o número de vagas de estacionamento de um aeroporto pode ser dimensionado multiplicando-se o volume de automóveis diário pela percentagem de pico horário e em seguida pelo tempo médio de permanência, este trabalho oferece ao planejador de transportes subsídios para a busca de um dimensionamento adequado de vagas para os aeroportos brasileiros em expansão, ou a serem construídos. Devido à dificuldade de obtenção de dados sobre a demanda horária nos estacionamentos, e do conseqüente conhecimento da percentagem de pico horário, esta foi uma lacuna deixada em aberto neste trabalho. Sugere-se a insistência junto às administrações dos estacionamentos dos aeroportos para que a mencionada informação seja fornecida, pois, ela é conhecida nos estacionamentos controlados eletronicamente. Considerando-se o fato de que muito pouco se tem pesquisado no Brasil sobre as viagens terrestres e os estacionamentos de automóveis nos aeroportos do país, e relevando-se as limitações impostas pela dificuldade de obtenção e coleta de dados, pode-se considerar que o trabalho ora apresentado representa uma contribuição ao estudo dos aeroportos brasileiros, e de maneira geral um incremento à área de transportes.
  • 208.
    __________ _ Aula04 – Aeroportos_ Apostila de Aeroportos 208 1.8. Referências Bibliográficas ASHFORD, N.and WRIGHT, P.H., Airport engineering, John Willy & Sons, 1984 FABIAN, L.J., Rationalizing Airport Ground Access, Transportation Quarterly, vol. 47, nº 4: 473 – 482,1993 FOOTE, P.J. and LABELLE, S. and STUART, D.G., Increasing Rail Transit Access to Airports in Chicago, Transportation Research Record 1600: 1-9, 1997. GOLDNER,L.G, Uma análise dos aeroportos como Pólos Geradores de Tráfego, relatório final de Pesquisa para o CNPq, 2002 GOLDNER,L.G, Estudo da escolha modal em aeroportos, relatório final de Pesquisa para o CNPq, 2004. GOLDNER,L.G e PEDROZO,D.E e GOLDNER,N, Modelos de demanda dos estacionamentos de automóveis nos aeroportos brasileiros, comunicação técnica, anais em cd do XVIII Congresso da ANPET, Florianópolis, 2004. GOLDNER,L.G e ANDRADE,L.G, Uma análise do aeroporto Salgado Filho como um pólo gerador de tráfego, Revista dos Transportes Públicos, ANTP, ano 26, 2º trimestre de 2004. GOSLING, G.D., Airport ground access and Intermodal Interface, Transportation Research record 1600: 10-17.,1997 HENSHER, D. A. e KING, J., Parking Demand and Responsiveness to supply, pricing and location in the Sydney Central Business District, Transportation Research part A 35, 177 – 196, 2001. HORONJEFF, R.and McKELVEY, F., Planning design of airports, McGrawHill Book Company, 1986. ITE (Institute of Transportation Engineering), Data needs for planning airport access by public transportation, ITE Journal, October,1980. KEEFER, L.E., Urban travel patterns for airports, shopping centers and industrial plants, National Cooperative Highway Research Program report 24, 1966 LACOMBE, A., Ground access to airports: prospects for intermodalism, Transportation Quarterly, vol.48, n.4: 381-392,1994 LEHRER, H.R. and FREEMAN, A., Intermodal airport-to-city-center passenger transportation at the 20 largest U.S. air carrier airport: the past, present and future, Journal of Air Transportation World Wide, vol.3 n.1: 12-23,1998 MOHR, E. and GOSLING, G.D., Role of Door-to-Door Vans in Airport Ground Transportation, Transportation Research Record 1461: 54 – 63, 1997. MÜLLER, C.e ALVES, C.J.P. e FORTES, C.N.B., Planejamento de aeroportos, apostila da divisão de infra-estrutura aeronáutica, ITA, 1988. PEREIRA FILHO, A J., SILVA, C.M. SILVEIRA, J.A., Demanda detalhada dos aeroportos brasileiros: mercado doméstico de passageiros, XIII ANPET, São Carlos – SP, 1999. RUHL, T.A. and TRNAVSKIS, B., Airport trip generation, ITE JOURNAL, May, 1998.
  • 209.
    __________ _ Aula04 – Aeroportos_ Apostila de Aeroportos 209 SHAPIRO, P.S. and KATZMAN, M. , Relationship between airport activity and ground transportations needs, Transportation Research Record 1622: 8- 12.(1998) SHOENFELD,W.M .,Two programs to ease automobile congestion at Los Angeles International Airport, Transportation Research Record No: 732 ,1979
  • 210.
    __________ _ Aula05 – Aeroportos_ Apostila de Aeroportos 210 AULA 05 HELIPORTOS E HELIPONTOS A Portaria 256/GC5 (13/05/2011) trata somente sobre as Zonas de Proteção para os Helipontos. Na falta de uma legislação específica da ANAC para os demais parâmetros do projeto de helipontos, o projetista deverá pautar-se pelo Anexo 14 – Volume II – Heliportos, revisado em 2009, como também no Manual de Heliportos da ICAO. CLASSE DE PERFORMANCE DOS HELICÓPTEROS Segundo a ICAO (Anexo 14 – Volume II) os heliportos são caracterizados em função da classe de performance dos helicópteros que operam nos mesmos. De acordo com o Anexo 6 da ICAO, os helicópteros dividem-se em três classes de performance: PC1, PC2 e PC3. Esta classificação é feita em função da capacidade do helicóptero de continuar o voo durante a fase da descolagem em caso de falha de uma turbina. A classe PC1 representa os helicópteros que em caso da falha de uma unidade de potência têm capacidade de pousar na área de abortagem da decolagem (Rejected Take-Off Area), ou prosseguir o voo até uma área de pouso apropriada. Os helicópteros da classe PC3, onde se incluem todos os helicópteros mono-turbina, em caso de falha da unidade de potência têm de proceder a um pouso forçado. A classe PC2 é uma classe intermediária de performance entre as duas anteriormente mencionadas. FIGURA 1 – FATO por classe de performance do helicóptero - Fonte: Ref.[1]
  • 211.
    __________ _ Aula05 – Aeroportos_ Apostila de Aeroportos 211 DIMENSÕES CARACTERÍSTICAS DOS HELICÓPTEROS D = maior dimensão do helicóptero RD = diâmetro do rotor do helicóptero UC = bitola do helicóptero UCW = largura externa do trem de pouso do helicóptero B = base do helicóptero FIGURA 2 – Dimensões características do helicóptero para o dimensionamento de um heliponto - Fonte: Ref.[1]
  • 212.
    __________ DIMENSÕES CARACTERÍSTICAS DEUM HELICÓPTER FIGURA 3 - Dimensões Características do Helicóptero Esquilo (AS _ Apostila de Aeroportos DIMENSÕES CARACTERÍSTICAS DE UM HELICÓPTER Dimensões Características do Helicóptero Esquilo (AS Aula 05 – Aeroportos_ 212 DIMENSÕES CARACTERÍSTICAS DE UM HELICÓPTERO Dimensões Características do Helicóptero Esquilo (AS 350)
  • 213.
    __________ _ Aula05 – Aeroportos_ Apostila de Aeroportos 213 D= 12,94m, RD= 10,69m, UC= 2,02m e UCW = 2,17m. 1 – ÁREA DE APROXIMACAO FINAL E DECOLAGEM (FATO) – área definida, no entorno de um heliponto, sobre a qual a fase final da manobra de aproximação para pairar ou pousar é completada e na qual a manobra de decolagem começa. FIGURA 4 - FATO para PC1 em helipontos na Superfície – Fonte: Ref. [1] Assim a FATO para os helicópteros PC1 será definida em função do manual de operação do helicóptero (HFM) que estabelece o valor da distância necessária para abortagem da decolagem (Reject Takeoff Distance), no caso de falha de uma turbina. Dimensões da FATO para Helipontos na Superfície e Elevado Classe de Performance Peso Máximo de Decolagem MTOW FATO PC1 - De acordo com o manual do helicóptero (HFM) e com uma largura =1D PC2 ou PC3 > 3.175kg Área que contem um círculo inscrito diâmetro = 1D ≤ 3.175kg * Área que contem um círculo inscrito diâmetro = 0,83D (*) Recomendado é 1D Uma FATO deverá: 1) ter declividade média ≤ 3% em qualquer direção, e declividade máxima para helicópteros PC1 = 5% e para PC2 ou PC3 = 7%; 2) ser uma superfície resistente ao efeito da turbulência do rotor; 3) ser livre de obstáculos que prejudicam a decolagem e pouso dos helicópteros; 4) ter suporte para acomodar o helicóptero PC1 na abortagem da decolagem.
  • 214.
    __________ _ Aula05 – Aeroportos_ Apostila de Aeroportos 214 A área de uma FATO ao redor da TLOF no caso de helicópteros PC2 ou PC3 deverá suportar a carga estática do helicóptero. Observação: as condições locais como altitude e temperatura devem ser consideradas na determinação da dimensão de uma FATO. No Manual de Heliportos da ICAO (Doc 9261) são dadas orientações para a execução dessas correções. 2 – ÁREA DE TOQUE E DE ELEVAÇÃO INICIAL (TLOF) - área de um heliponto com capacidade de suporte sobre a qual um helicóptero pode tocar ou se elevar do solo. Para um heliponto na superfície a TLOF corresponderá a uma área que contem um círculo inscrito com diâmetro = 0,83D do maior helicóptero que pretende servir. Para um heliponto elevado a TLOF será igual a FATO. Uma TLOF poderá ter qualquer formato e possuir uma declividade ≤ 2%. Quando a TLOF for dentro da FATO, ela deverá suportar a carga dinâmica do helicóptero (Manual de Heliportos da ICAO). 3 – SUPERFÍCIE DE APROXIMAÇÃO E DE DECOLAGEM São superfícies definidas (ver figuras 9A, 9B, 9C e 10) conforme os parâmetros estabelecidos nas tabelas HEL1, HEL2, HEL3 da Portaria 256/GC5. No caso do emprego de uma superfície em curva os parâmetros deverão obedecer também à tabela HEL4. 4 – SUPERFÍCIE DE TRANSIÇÃO São superfícies definidas (ver figura 11) conforme os parâmetros apresentados nas tabelas HEL1 e HEL2 da Portaria 256/GC5. 5 – ÁREA DE SEGURANÇA - área de um heliponto definida no entorno da FATO, a qual deve ser livre de obstáculos, exceto aqueles necessários à navegação aérea, com o objetivo de reduzir riscos de danos aos helicópteros que se desviem, acidentalmente, da FATO. Assim a área de segurança que circunda a FATO não necessita ser sólida. A área de segurança para operação com helicópteros PC1 em Condições Meteorológicas Visuais (VMC), deverá se estender fora da FATO a uma distância de pelo menos 3m ou 0,25D, tal que:
  • 215.
    __________ _ Aula05 – Aeroportos_ Apostila de Aeroportos 215 1) Cada lado externo da área de segurança seja pelo menos 2D, quando a FATO é um quadrilátero; 2) O diâmetro externo da área de segurança seja pelo menos 2D quando a FATO é circular. Nas operações com helicópteros PC2 ou PC3 em VMC, a área de segurança deverá se estender 3m ou 0,5D (o que for maior), tal que: 1) Cada lado externo da área de segurança seja ≥2D, quando a FATO é um quadrilátero; 2) O diâmetro externo da área de segurança seja ≥2D, quando a FATO é circular. No caso de operação em Condições Meteorológicas por Instrumentos (IMC) a área de segurança deverá ter: 1) Lateralmente a largura de pelo menos 45m para cada lado do eixo, e 2) Longitudinalmente a distância de 60m além do final da FATO (definida pelo Manual de Voo do Helicóptero – MFH), ou até o final da zona livre de obstáculos (clearway). A área de segurança quando for sólida, isto é, existir fisicamente, não deve exceder a declividade de 4% para cima a partir da borda da FATO. DISTÂNCIA MÍNIMA DE SEPARAÇÃO PARA FATO Se o peso da aeronave ou helicóptero for Distância entre borda da FATO e a borda da pista P/D ou pista de táxi Menor do que 3.175 kg 60 m 3.175 kg – menor do que 5.760 kg 120 m 5.7160 kg – menor do que 100.000 kg 180 m 100.000 kg ou maior 250 m
  • 216.
    __________ _ Aula05 – Aeroportos_ Apostila de Aeroportos 216 6 – SUPERFÍCIE HORIZONTAL INTERNA E SUPERFÍCIE CÔNICA São superfícies definidas (ver figuras 8 e 11) conforme os parâmetros apresentados nas tabelas HEL1 e HEL2 da Portaria 256/GC5. PLANO BÁSICO DE ZONA DE PROTEÇÃO DE HELIPONTO Um Plano Básico de Zona de Proteção de Heliponto (PBZPH) é definido em função das superfícies limitadoras de obstáculos de helipontos e com base no planejamento aprovado para o heliponto. 0 PBZPH contem as seguintes superfícies: 1 - Superfície de Aproximação; 2 - Superfície de Decolagem; 3 - Superfície de Transição; 4 - Superfície Horizontal Interna; e 5 - Superfície Cônica.
  • 217.
    __________ _ Aula05 – Aeroportos_ Apostila de Aeroportos 217 FIGURA 5 – Plano Básico de Zona de Proteção de Heliponto (Figura 8 da Portaria 256/GC5) As superfícies limitadoras de obstáculos de helipontos são utilizadas para disciplinar a ocupação do solo, de modo a garantir a segurança e a regularidade das operações aéreas. ESPECIFICAÇÕES PARA SUPERFÍCIES LIMITADORAS DE OBSTÁCULOS DE HELIPONTOS Os requisitos e parâmetros para as superfícies limitadoras de obstáculos de helipontos são especificados com base no tipo de operação, visual e/ou por instrumentos. As superfícies limitadoras de obstáculos aplicáveis a FATO para Aproximação Visual são as seguintes: 1 - Superfície de Aproximação; e 2 - Superfície de Decolagem. Os parâmetros e as dimensões das superfícies citadas constam das Tabelas HEL1, HEL3 e HEL4 e devem estar localizados conforme a Figura 9A da Portaria 256.
  • 218.
    __________ _ Aula05 – Aeroportos_ Apostila de Aeroportos 218 As superfícies limitadoras de obstáculos de helipontos aplicáveis a FATO para Aproximação de Precisão e de Não Precisão são as seguintes: 1 - Superfície de Aproximação; 2 - Superfície de Decolagem; 3 - Superfície de Transição; 4 - Superfície Horizontal Interna; e 5 - Superfície Cônica. Para uma FATO de aproximação de não precisão, a Superfície Cônica deixará de ser obrigatória caso haja Superfície Horizontal Interna. A Superfície Horizontal Interna será obrigatória, para uma FATO de aproximação de não precisão, quando não for estabelecido procedimento de aproximação por instrumentos para ambas as aproximações finais. Para uma FATO de aproximação de precisão, a Superfície Horizontal Interna deverá ser desconsiderada. Os parâmetros e as dimensões das superfícies citadas constam das Tabelas HEL1, HEL2, HEL3 e HEL4 e devem estar localizados conforme as figuras 8 a 11 da Portaria 256/GC5. Os helipontos com áreas de pouso circulares não possuirão a Superfície de Transição, e as superfícies de Aproximação e Decolagem serão utilizadas em todas as direções. Os helipontos públicos e privados, localizados sobre a superfície, a água ou elevado devem ter, no mínimo duas superfícies de aproximação e decolagem, separadas por, no mínimo, 150°. Os helipontos privados poderão, excepcionalmente, operar com apenas uma superfície de aproximação e decolagem.
  • 219.
    __________ _ Aula05 – Aeroportos_ Apostila de Aeroportos 219 TABELA HEL1
  • 220.
    __________ _ Aula05 – Aeroportos_ Apostila de Aeroportos 220 TABELA HEL2
  • 221.
    __________ _ Aula05 – Aeroportos_ Apostila de Aeroportos 221 TABELA HEL3
  • 222.
    __________ _ Aula05 – Aeroportos_ Apostila de Aeroportos 222 TABELA HEL4 FIGURA 6 - Superfície de Aproximação e Decolagem VFR (Figura 9A da Portaria 256/GC5)
  • 223.
    __________ _ Aula05 – Aeroportos_ Apostila de Aeroportos 223 FIGURA 7 - Superfície de Aproximação IFR Não Precisão (Figura 9B da Portaria 256/GC5) FIGURA 8 - Superfície de Aproximação IFR Precisão (Figura 9C da Portaria 256/GC5)
  • 224.
    __________ _ Aula05 – Aeroportos_ Apostila de Aeroportos 224 FIGURA 9 - Superfície de Decolagem IFR (Figura 10 da Portaria 256/GC5) FIGURA 10 - Superfícies de Transição IFR (Figura 11 da Portaria 256/GC5)
  • 225.
    __________ _ Aula05 – Aeroportos_ Apostila de Aeroportos 225 PISTAS DE TÁXI E ROTAS DE TAXIAMENTO PARA HELICÓPTEROS Caso seja necessário, os helicópteros deverão se deslocar da FATO para a área de estacionamento, ou vice-versa, através das pistas de táxi construídas na superfície, para os helicópteros com rodas, ou aéreas definidas para os helicópteros sem rodas. Para o deslocamento dos helicópteros com segurança são definidas também rotas de taxiamento para as duas situações, ou seja, deslocamento na superfície e no ar. PISTA DE TÁXI NA SUPERFÍCIE E ROTA DE TAXIAMENTO X FIGURA 11 – Pista de Táxi e Rota Taxiamento na superfície – Anexo 14 – Vol. II A pista de táxi deverá ter uma largura igual ou superior a 1,5 UCW (largura externa do trem de pouso) do maior helicóptero que ela pretende servir. A pista de táxi deverá ter uma declividade longitudinal menor do que 3%. Deverá ter suporte para resistir à carga estática e atender ao tráfego pretendido de helicópteros. A pista de táxi de helicópteros deverá ser centrada na rota de taxiamento, e esta rota se estenderá simetricamente para cada lado da linha central da pista de táxi pelo menos 0,75 do valor da maior largura total do helicóptero (RD), que ela deseja servir. Nenhum objeto será permitido na área da rota de taxiamento, exceto os objetos frangíveis, localizados na área por causa de sua função. A pista de táxi e a rota de taxiamento deverão prover a rápida drenagem, contudo a declividade transversal da pista de táxi não deve exceder a 2%.A superfície da rota de taxiamento deverá ser resistente à turbulência causada pelo rotor.
  • 226.
    __________ _ Aula05 – Aeroportos_ Apostila de Aeroportos 226 PISTA DE TÁXI NO AR E ROTA DE TAXIAMENTO NO AR FIGURA 12 – Pista de Táxi e Rota Taxiamento no Ar – Anexo 14 – Vol. II A largura da pista de táxi no ar deverá ter a largura igual ou superior a 2,0 UCW (largura externa do trem de pouso) do maior helicóptero que ela pretende servir. A superfície da pista de táxi no ar deverá ser capaz de atender ao pouso de emergência e ter suporte para resistir à carga estática dos helicópteros. A declividade transversal da pista de táxi no ar não deverá ser superior a 10%, bem como a declividade longitudinal não deve exceder a 7%. E, de qualquer maneira, a declividade não deverá exceder a declividade limite para pouso dos helicópteros que ela pretende servir. A pista de táxi no ar deverá ser centrada na rota de taxiamento no ar, e esta rota deverá se estender simetricamente para cada lado da linha central uma distância igual ou maior que 2,0 vezes o valor da maior largura total (RD) do helicóptero que deseja servir. Nenhum objeto será permitido na área da rota de taxiamento no ar, exceto os objetos frangíveis, localizados na área por causa de sua função. A superfície da rota de taxiamento no ar deverá ser resistente à turbulência causada pelo rotor e a sua superfície deverá prover o “efeito solo”.
  • 227.
    __________ _ Aula05 – Aeroportos_ Apostila de Aeroportos 227 PÁTIO DE ESTACIONAMENTO E POSIÇÃO DE PARADA DE HELICÓPTEROS A posição de parada do helicóptero deverá ter dimensão suficiente para conter um círculo de 1,2D do maior helicóptero que a posição de parada pretende servir. Se a posição de parada for usada como táxi de passagem, a largura mínima da posição de parada e da área de proteção associada deverá ser igual a da rota de taxiamento. FIGURA 13 – Posição de Parada de Helicópteros – Anexo 14 – Vol. II A declividade em qualquer direção da área de parada do helicóptero não deverá exceder o valor de 2%. Quando a posição de parada é usada para o giro de um helicóptero, ela deverá ser cercada por uma área de proteção que se estende a uma distância de 0,4D da borda da área de parada.
  • 228.
    __________ _ Aula05 – Aeroportos_ Apostila de Aeroportos 228 FIGURA 14 – Posição de Parada de Helicópteros com Área de Segurança – Anexo 14 – Vol. II Para operações simultâneas, a área de parada e proteção associada, bem como a rota de taxiamento não deve sofrer superposição. Onde não houver operação simultânea prevista poderá ocorrer à superposição. FIGURA 15 – Posições de Parada com operação simultânea – Anexo 14 – Vol. II
  • 229.
    __________ _ Aula05 – Aeroportos_ Apostila de Aeroportos 229 FIGURA 16 – Posições de Parada sem operação simultânea – Anexo 14 – Vol. II Quando uma área de parada for usada para pista de táxi na superfície deverá ser levado em conta o raio mínimo de giro das rodas do trem de pouso do helicóptero que ela pretende servir. Neste caso a sua superfície também deverá prover o “efeito solo”. Objetos fixos não são permitidos na área de parada e na área de proteção associada do helicóptero. A parte central da área de parada deve ter capacidade para atender ao tráfego dos helicópteros que pretende servir e uma área com suporte para a carga estática igual: 1) Àquela com um diâmetro maior ou igual a 0,83D do maior helicóptero; 2) A posição de parada que será usada como pista de táxi de passagem adotando a mesma largura de uma pista de táxi de superfície.
  • 230.
    __________ _ Aula05 – Aeroportos_ Apostila de Aeroportos 230 CARGAS PARA O DIMENSIONAMENTO ESTRUTURAL EM HELIPONTO ELEVADO No cálculo estrutural deverá ser considerada uma carga de impacto igual a 75% do Peso Máximo de Decolagem do Helicóptero (MTOW) sobre cada montante principal. A área de aplicação da carga de impacto será igual a 0,09m2 por pneu ou esqui. As demais cargas serão de acordo com ABNT: (NBR 6.120) – 300 kg/m2 em toda a extensão. Para os helipontos elevados são consideradas três situações de carga: 1ª Hipótese – Peso próprio + sobrecarga de 300 kg/m2. 2ª Hipótese – Peso próprio + carga de impacto do helicóptero (75% MTOW) atuando em pontos desfavoráveis da TLOF + 100 kg/m2 de carga aerodinâmica. 3ª Hipótese – Combinação análise de ventos (NBR 6.123) com cada uma das hipóteses anteriores, somando-se a situação mais desfavorável. Demais instruções podem ser obtidas no Manual de Heliportos da ICAO (Doc 9261). Tabela da Categoria dos Helicópteros pelo MTOW Categoria do Helicóptero Peso máximo de descolagem MTOW Distância entre rodas do trem (kg) (kN) (m) 1 Até 2.300 Até 22.6 1.75 2 2.301 – 5.000 33.6 – 49.2 2.0 3 5.001 – 9.000 49.2 – 88.5 2.5 4 9.001 – 13.500 88.5 – 133.0 3.0 5 13.501 – 19.500 133.0 – 192.0 3.5 6 19.501 – 27.000 192.0 – 266.0 4.5 Fonte: Ref. [1] – adaptado do Manual de Heliportos da ICAO
  • 231.
    __________ _ Aula05 – Aeroportos_ Apostila de Aeroportos 231 AUXÍLIOS VISUAIS PARA HELIPONTOS Os helipontos deverão estar equipados com pelo menos um Indicador de Direção de Ventos (conhecido como Biruta), conforme NBR 12.647 da ABNT. SINALIZAÇÃO HORIZONTAL Os helipontos deverão ter também uma sinalização horizontal efetivada por uma pintura que será composta pelos seguintes elementos: 1) Sinal de identificação do heliponto – letra “H” na cor branca e no caso de hospitais também a pintura de uma cruz (cor branca) e o H (cor vermelha), conforme figura 17; 2) Número indicador do peso máximo de resistência do piso (em toneladas), composto de 1, 2 ou 3 dígitos e a letra “t” (ver figura 18) e com uma cor de contraste com o piso; 3) Indicador do valor do maior D admissível nos helipontos elevados, pintura preferível na cor branca e com o valor dado em metros e arredondamento de 0,5m (deve ser lido no sentido da aproximação); 4) Delimitação da área da FATO nos helipontos na superfície, quando for necessário evidenciá-la, será feita através da pintura de faixas descontínuas na cor branca com 9m de comprimento ou 1/5 da dimensão da FATO e com 1m de largura. Para uma FATO quadrada ou retangular o espaçamento máximo entre as faixas será 50m e no mínimo 3 em cada lado, incluindo-se as faixas dos vértices. E, para qualquer outra forma, inclusive a circular, o espaçamento máximo será 10m e no mínimo de 5 faixas; 5) Designação da FATO, quando for necessário para o piloto, deverão ser pintados (ver figura 19) no início da FATO os números referentes a um décimo do azimute magnético do rumo da aproximação (dimensões conforme Anexo 14 – Vol. I – Aeródromos); 6) Sinalização do ponto alvo, deve existir no heliponto onde é necessário para o piloto fazer a aproximação por um ponto particular antes de se dirigir para a TLOF. Este ponto (ver figura 20) deverá ser posicionado dentro da FATO; 6) Delimitação da TLOF através da pintura de uma faixa contínua na cor branca no perímetro da área com uma largura de pelo menos 30cm; 7) Sinalização de posição do toque, ela deverá ser pintada quando para o toque do helicóptero no pouso for necessário definir uma posição exata. A sinalização será uma pintura de um círculo na cor amarela com pelo menos 0,5m de largura e o diâmetro interno será igual a 0,5D do maior helicóptero que o heliponto pretende servir; 8) Pintura do nome do heliponto, é usada quando não há meios alternativos suficientes para a identificação visual do heliponto. Os caracteres terão uma altura maior do que
  • 232.
    __________ _ Aula05 – Aeroportos_ Apostila de Aeroportos 232 3m nos helipontos na superfície e uma altura maior do que 1,2m nos elevados. A cor da pintura do nome deverá contrastar com a do piso. FIGURA 17 – Sinalização de Identificação do Heliponto – Anexo 14 – Vol. II FIGURA 18 – Número indicador do peso máximo admissível no Heliponto – Anexo 14 – Vol. II
  • 233.
    __________ _ Aula05 – Aeroportos_ Apostila de Aeroportos 233 FIGURA 19 – Designação da FATO – Anexo 14 – Vol. II FIGURA 20 – Sinalização do Ponto Alvo – Anexo 14 – Vol. II
  • 234.
    __________ _ Aula05 – Aeroportos_ Apostila de Aeroportos 234 SINALIZAÇÃO LUMINOSA EM HELIPONTOS Um heliponto quando for projetado para operações noturnas deverá ter os seguintes elementos de sinalização luminosa: 1) Farol de aeródromo – quando necessário para identificar o heliponto; 2) Sistema de luzes de aproximação – quando se desejar indicar a direção de aproximação; 3) Sistema de guia de alinhamento visual – quando necessário pelas circunstâncias locais de aproximação; 4) Indicador visual de rampa de aproximação (PAPI, APAPI e HAPI); 5) Luzes de delimitação da FATO – são necessárias; 6) Luzes do sistema de iluminação da TLOF – são necessárias; 7) Luzes de pista de táxi (eixo e bordas); 8) Luzes de sinalização de obstáculos; e 9) Holofotes para destaque de obstáculos. As luzes de delimitação da área da FATO são usadas nos helipontos de superfície com operações noturnas, exceto naqueles em que a TLOF é muito próxima ou coincidente, ou ainda quando a extensão da FATO é visualmente evidente. As luminárias das luzes de delimitação serão localizadas ao longo da borda da FATO, emitindo a cor branca e uniformemente espaçadas, conforme o seguinte: 1) Área de forma quadrada ou retangular a intervalos não maior do que 50m e, no mínimo 4 luminárias em cada lado, incluindo-se as luminárias de cada vértice; 2) Para outros formatos, incluindo a forma circular, as luminárias serão dispostas a intervalos máximos de 5m e, com um mínimo de 10 luminárias. As luminárias das luzes de delimitação da FATO não deverão exceder a altura de 25cm. Elas deverão ser embutidas quando a ultrapassagem do nível da superfície da FATO prejudicar a operação dos helicópteros. As luzes do sistema de iluminação da área da TLOF são usadas nos helipontos com operações noturnas, e consistem de um ou mais dos seguintes elementos. Para helipontos na superfície, serão: 1) Luzes de delimitação do perímetro; ou 2) Holofotes para iluminar a área da TLOF; ou 3) Barras de luzes pontuais (ASPSL), ou painel luminescente (PL) quando as opções “1” e “2” não são praticáveis e existem luzes de delimitação da FATO.
  • 235.
    __________ _ Aula05 – Aeroportos_ Apostila de Aeroportos 235 Para helipontos elevados, serão: 1) Luzes de delimitação do perímetro; e 2) ASPSL e/ou PL para identificar a sinalização de toque, e/ou holofotes para iluminar a área da TLOF. As luzes de delimitação do perímetro da TLOF serão dispostas ao longo da borda, ou dentro de uma distância de 1,5m no máximo. Quando a TLOF for de forma circular as luzes deverão ser: 1) Posicionadas em linha reta com padrões que dão informação ao piloto sobre o seu desvio no deslocamento, e 2) Quando a opção “1” não é praticável, serão uniformemente espaçadas ao longo do perímetro da TLOF em intervalos apropriados, exceto sobre o setor de 45 graus onde as luzes deverão ter espaçamento reduzido para a metade. As luzes de delimitação do perímetro da TLOF serão posicionadas em intervalos não maiores do que 3m para helipontos elevado e 5m para helipontos na superfície. Na instalação das luzes de delimitação do perímetro da TLOF será adotado um número mínimo de 4 luminárias em cada lado, incluindo-se as luminárias dos vértices. No caso de uma TLOF circular, e se a instalação for realizada conforme item “2” do parágrafo anterior, o número mínimo de luminárias será igual a 14. As luzes das luminárias instaladas no perímetro da TLOF serão na cor verde, de modo que em helipontos elevados não poderão ser vistas pelo piloto quando vier de abaixo para alcançar a plataforma da TLOF. Os holofotes de iluminação da TLOF deverão ser posicionados de modo que não causem ofuscamento ao piloto na aproximação, ou às pessoas que estão trabalhando na área. Na instalação das luzes de uma pista de táxi de helipontos, seja no caso das luzes de eixo, ou das luzes de borda da pista de táxi, os intervalos entre luminárias e as cores das luzes obedecerão aos mesmos padrões adotados para os projetos de aeródromos, segundo o Anexo 14 – Volume I. As instalações das luzes de sinalização de obstáculos também seguirão os padrões estabelecidos pelo Anexo 14 – Volume I. Quando não for possível instalar as luzes sinalizadoras nos obstáculos, então deverão ser adotados holofotes para destacá-los no período noturno.
  • 236.
    __________ _ Aula05 – Aeroportos_ Apostila de Aeroportos 236 SELEÇÃO DE SÍTIOS PARA HELIPORTOS Ref. [2] Um dos aspectos mais importantes de planejamento e projeto de um sistema de heliportos é a seleção apropriada dos sítios. Os estudos de escolha de sítio devem levar em conta os objetivos que maximizem a conveniência do usuário, segurança da aeronave e a aceitação da comunidade. O primeiro passo deve consistir na identificação e análise da viabilidade das fontes de informação. Os estudos de escritório devem incluir os seguintes componentes: 1 – A consideração de estudos relevantes existentes (exemplo: plano de sistema de aeroportos metropolitanos, plano de uso do solo e planos de transportes abrangentes). Esses estudos podem conter previsões de uso do solo, O-D de viagem, dados de tempo de viagem para o transporte de superfície e outras informações. 2 – Uma análise das informações de vento disponíveis para determinar a orientação desejável da aproximação do heliporto. 3 – Estudos de cartas do IBGE e mapa rodoviário e cartas aeronáuticas, para a seleção futura e avaliação de sítios prováveis. 4 – Estudo do custo das áreas de interesse. Uma inspeção aérea de cada sítio para helicóptero poderá ajudar bastante na avaliação de possíveis obstáculos no vôo, existência de áreas de pouso de emergência localizadas ao longo da aproximação, turbulências por vento, e outras características relacionadas à navegação aérea. Uma detalhada inspeção no local de cada sítio sob estudo deve ser realizada antes de uma comparação final feita para escolha dos sítios alternativos. Pelo menos 8 fatores devem ser considerados quando da análise de sítios potenciais para heliportos: 1 – Classe e plano do heliporto; 2 – Conveniência dos usuários; 3 – Obstrução do espaço aéreo; 4 – Coordenação com outros movimentos de aeronaves; 5 – Direção do vento predominante; 6 – Fatores sociais; 7 – Turbulência; e 8 – Visibilidade.
  • 237.
    __________ _ Aula05 – Aeroportos_ Apostila de Aeroportos 237 Observação: os helicópteros são mais apropriados para realizarem os transportes em distâncias curtas, tipicamente utilizado nas viagens até 75 milhas (136,5km). FATORES RELACIONADOS À SELEÇÃO DE SÍTIOS – Ref. [2] A seleção de um sítio para heliporto em área urbano requer a consideração de muitos fatores, os mais importantes deles são: 1 – A melhor locação para servir ao tráfego potencial; 2 – A mínima obstrução nas áreas de aproximação e decolagem; 3 – A mínima perturbação sonora (ruído) e locação desejável considerando o “uso do solo” adjacente; 4 – Um bom acesso por transporte de superfície e estacionamento; 5 – Um custo mínimo para aquisição e desenvolvimento; 6 – Duas áreas de aproximação separadas pelo menos de 90º; 7 – Evitar o conflito de tráfego entre helicópteros e outro tipo de tráfego aéreo; 8 – Consideração da turbulência e restrições de visibilidade apresentadas pelos edifícios próximos; e 9 – Previsão de área de pouso de emergência ao longo de toda a rota para helicópteros com uma turbina. A escolha final de um sítio para heliporto usualmente irá requer um compromisso entre estes vários objetivos. O problema mais crítico pode ser esperado em grandes cidades, áreas metropolitanas altamente desenvolvidas. Em grandes áreas urbanas heliportos devem ser planejados como base regional. O primeiro passo é preparar uma estimativa de demanda por serviços de helicópteros e a origem e destino (O-D) dessa demanda. A segunda etapa é selecionar o sítio do heliporto ou sítios que podem satisfazer razoavelmente a demanda e ainda atender aos requisitos enumerados no parágrafo anterior. O principal mercado de transporte por helicópteros é nos grandes centros urbanos entre aeroportos, ou aeroportos e ponto central. Portanto, é essencial que o heliporto do centro da cidade seja localizado próximo a área de hotéis, e os centros de negócios. Da mesma forma, uma adequada previsão de pouso de helicópteros deve ser feita nos aeroportos.
  • 238.
    __________ _ Aula05 – Aeroportos_ Apostila de Aeroportos 238 TABELA DE CARACTERÍSTICAS DE HELICÓPTEROS Tipos Helicópteros D (m) RD (m) Rotor Capacidade Nº Pessoas Peso (kg) Carga (Kg) Velocidade (km/h) Alcance (km) Esquilo 12,94 10,69 1P+5/6Pax 2.250 1.078 246 666 Colibri 117 13,00 11,00 1P+7/10Pax 3.350 1.595 246 540 Colibri 135 12,19 10,20 2P+5/6Pax 2.835 1.255 256 615 Dolphin 365* 13,73 11,94 2P+11Pax 4.250 1.979 275 860 Super Puma* 18,70 15,60 2P+20Pax 8.600 4.500 262 831 AW119Ke 12,92 10,83 1P+7Pax 3.150 1.695 257 935 AW109Power* 13,04 11,00 1P+7Pax 3.000 1.410 285 948 AW139* 16,66 13,80 2P+14 6.400 2.680 306 1.250 Projeto 20,00 16,00 2P+20Pax 10.000 4.500 262 831 Projeto 1 14,00 12,00 2P+11Pax 5.000 1.979 275 860 Esquilo1 13,00 10,70 1P+5/6Pax 2.250 1.078 246 666 Nota: (*) Helicóptero com duas turbinas.
  • 239.
    __________ _ Aula05 – Aeroportos_ Apostila de Aeroportos 239 SISTEMA DE COMBATE CONTRA-INCÊNDIO EM HELIPONTOS De acordo com o Apêndice I ao Anexo à Resolução nº 115 da ANAC, de 06/10/2009, os helicópteros para efeito de proteção e combate contra-incêndio são classificados nas seguintes categorias. Categoria de Classificação do Helicóptero Categoria Comprimento Total - D H1 <15m H2 15 a <24m H3 24 a <35m O nível de proteção do heliponto em relação ao combate contra incêndio, seja na superfície ou elevado, é atingido pela existência da quantidade mínima de agentes extintores de incêndio no heliponto, conforme as tabelas apresentadas a seguir: Quantidades mínimas de agentes extintores por categoria heliponto superfície Categoria do heliponto Espuma de eficácia nível B Agente complementar Água para produção de espuma (litros) Regime descarga solução de espuma (litros/min) Pó químico (kg) Regime descarga (kg/s) [1] [2] [3] [4] [5] H1 500 250 23 2,25 H2 1.000 500 45 2,25 H3 1.600 800 90 2,25
  • 240.
    __________ _ Aula05 – Aeroportos_ Apostila de Aeroportos 240 Quantidades mínimas de agentes extintores por categoria heliponto elevado Categoria do heliponto Espuma de eficácia nível B Agente complementar Água para produção de espuma (litros) Regime descarga solução de espuma (litros/min) Pó químico (kg) Regime descarga (kg/s) [1] [2] [3] [4] [5] H1 2.500 250 45 2,25 H2 5.000 500 45 2,25 H3 8.000 800 45 2,25 PLANO BÁSICO DE ZONEAMENTO DE RUÍDO DE HELIPONTOS O Pano Básico de Zoneamento de Ruído de helipontos de acordo com o RBAC 161 é definido pelas curvas de ruído de 75 e 65, as quais são traçadas como círculos a partir do centro geométrico do heliponto com os raios de 100 e 300 metros, respectivamente. A restrição do uso e ocupação do solo no entorno do heliponto será definida segundo a tabela E-1 da Subparte E - Uso do Solo - do RBAC 161 da ANAC. FIGURA 21 – Configuração das Curvas de Ruído 75 e 65 para helipontos
  • 241.
    __________ _ Aula05 – Aeroportos_ Apostila de Aeroportos 241 REFERÊNCIAS: 1- Luís Felipe Magalhães Pereira - AFA 1061, Tese de Mestrado: Concepção e dimensionamento de um heliporto elevado para operação do EH-101 Merlin – Academia da Força Aérea e Instituto Superior Técnico – Universidade Técnica de Lisboa, Ciências Militares e Aeronáuticas, Especialidade de Engenharia de Aeródromos, Ramo Estruturas, Portugal, Fevereiro de 2008. 2- Planning and Design of Airports – Robert Horonjeff and Francis X. McKelvey – 3ª Edição Editora McGraw – Hill Inc. 1986.