Nome:_________________________
_______________________ Nº_____
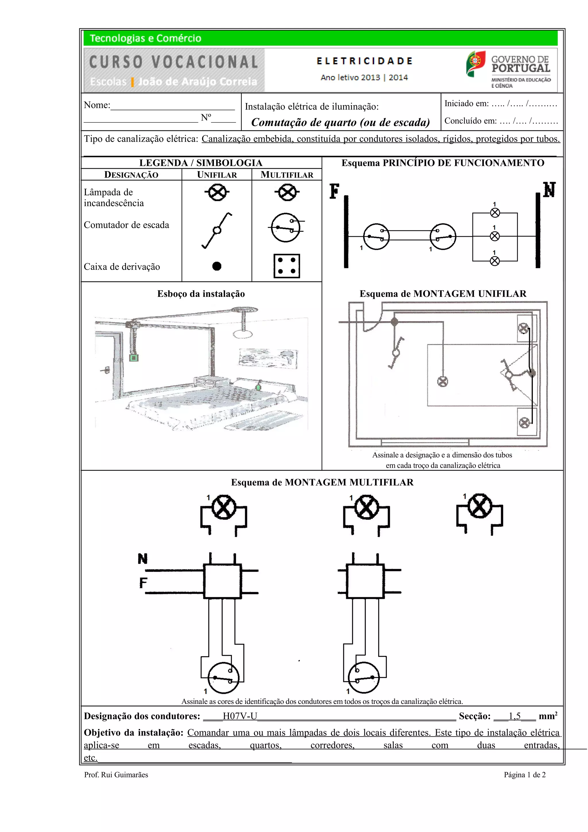
Instalação elétrica de iluminação:
Comutação de quarto (ou de escada)
Iniciado em: ….. /….. /…….…
Concluído em: …. /…. /………
Tipo de canalização elétrica: Canalização embebida, constituída por condutores isolados, rígidos, protegidos por tubos.
_______________________________________________________________________________________________
LEGENDA / SIMBOLOGIA Esquema PRINCÍPIO DE FUNCIONAMENTO
DESIGNAÇÃO UNIFILAR MULTIFILAR
Lâmpada de
incandescência
Comutador de escada
Caixa de derivação
Esboço da instalação Esquema de MONTAGEM UNIFILAR
Assinale a designação e a dimensão dos tubos
em cada troço da canalização elétrica
Esquema de MONTAGEM MULTIFILAR
Assinale as cores de identificação dos condutores em todos os troços da canalização elétrica.
Designação dos condutores: ____H07V-U________________________________________ Secção: ___1,5___ mm2
Objetivo da instalação: Comandar uma ou mais lâmpadas de dois locais diferentes. Este tipo de instalação elétrica
aplica-se em escadas, quartos, corredores, salas com duas entradas,
etc._______________________________________
Prof. Rui Guimarães Página 1 de 2
A instalação elétrica designada por comutação de escada ou comutação de quarto permite comandar uma ou mais
lâmpadas de dois locais diferentes.
Este tipo de instalação elétrica aplica-se em escadas, quartos, corredores, salas com duas entradas, etc.
Por exemplo, para acender a luz antes de subirmos uma escada e apagá-la quando chegarmos ao cimo, ou vice-versa,
devemos colocar, em cada extremo da escada, um comutador de escada.
Este tipo de instalação é também frequente nos quarto permitindo-nos acender a luz no comutador de quarto (escada)
colocado junto da porta de entrada e apagá-la noutro, normalmente uma pera comutadora, colocado junto da cabeceira
da cama, ou então acender a luz na cabeceira da cama e apagá-la ao sairmos do quarto.
Existem vários tipos de comutadores de escada ou de quarto, cujos símbolos se representam de seguida:
Tipo de comutador de escada Símbolo elétrico
• Tipo alavanca
• Tipo basculante
• Tipo rotativo
Prof. Rui Guimarães Página 2 de 2

08a comutacao escada

  • 1.
    Nome:_________________________ _______________________ Nº_____ Instalação elétricade iluminação: Comutação de quarto (ou de escada) Iniciado em: ….. /….. /…….… Concluído em: …. /…. /……… Tipo de canalização elétrica: Canalização embebida, constituída por condutores isolados, rígidos, protegidos por tubos. _______________________________________________________________________________________________ LEGENDA / SIMBOLOGIA Esquema PRINCÍPIO DE FUNCIONAMENTO DESIGNAÇÃO UNIFILAR MULTIFILAR Lâmpada de incandescência Comutador de escada Caixa de derivação Esboço da instalação Esquema de MONTAGEM UNIFILAR Assinale a designação e a dimensão dos tubos em cada troço da canalização elétrica Esquema de MONTAGEM MULTIFILAR Assinale as cores de identificação dos condutores em todos os troços da canalização elétrica. Designação dos condutores: ____H07V-U________________________________________ Secção: ___1,5___ mm2 Objetivo da instalação: Comandar uma ou mais lâmpadas de dois locais diferentes. Este tipo de instalação elétrica aplica-se em escadas, quartos, corredores, salas com duas entradas, etc._______________________________________ Prof. Rui Guimarães Página 1 de 2
  • 2.
    A instalação elétricadesignada por comutação de escada ou comutação de quarto permite comandar uma ou mais lâmpadas de dois locais diferentes. Este tipo de instalação elétrica aplica-se em escadas, quartos, corredores, salas com duas entradas, etc. Por exemplo, para acender a luz antes de subirmos uma escada e apagá-la quando chegarmos ao cimo, ou vice-versa, devemos colocar, em cada extremo da escada, um comutador de escada. Este tipo de instalação é também frequente nos quarto permitindo-nos acender a luz no comutador de quarto (escada) colocado junto da porta de entrada e apagá-la noutro, normalmente uma pera comutadora, colocado junto da cabeceira da cama, ou então acender a luz na cabeceira da cama e apagá-la ao sairmos do quarto. Existem vários tipos de comutadores de escada ou de quarto, cujos símbolos se representam de seguida: Tipo de comutador de escada Símbolo elétrico • Tipo alavanca • Tipo basculante • Tipo rotativo Prof. Rui Guimarães Página 2 de 2